Хрущевки планировка – Хрущевки: описание, типовые планировки с фото
Хрущевки: описание, типовые планировки с фото
29 сентября, 2014. Прочитано 130543 раз(а)
Введение
Сегодня существует множество многоярусных домов различной планировки, годов постройки и размера жилой площади. В данной статей Мы более подробно рассмотрим основные планировки популярных многоэтажных «Хрущовок», которые можно встретить в каждой стране бывшего СССР. Как правило, это 4-х или 5-ти этажные многоквартирные дома, которые возводились во времена руководства Хрущева Никиты Сергеевича.
«Хрущевки» возводились в период с 1958 до 1985 года, при этом стройка была современного на то время типа, и тысячи семей смогли получить комфортабельные квартиры с проходными комнатами. С 1958 года действует собственный СНиП.
Общие сведенья о хрущевках
Первое поколение 4-х или 5-ти этажных «хрущевок» отличалось небольшой жилой площадью, проходными комнатами. В таких апартаментах высота потолков достигала всего 2,48 метра, в домах блочного типа высота потолка могла достигать 2,7 метра. В «хрущевках» была достаточно слабая звукоизоляция помещений, совмещенный санузел и отсутствовали лифты.
Стоит отметить, что некоторые «хрущевки» относились к временному жилью, которые рассчитывали на эксплуатацию до 25 лет. Однако большая часть, все еще используется гражданами бывших стран СССР. К «хрущевкам» не сносимой серии применялись другие эксплуатационные нормы до 50 лет. В последствие эксперты заявили, что эксплуатационный период можно продлить до 150 лет (в случае капитальных ремонтов согласно нормам). На сегодняшний день «хрущевки» в Москве и Питере подлежат сносу. Однако в Минске, «хрущевкам» выполнили кап. ремонт и утеплили наружные стены.
Основные характеристики «хрущевок»:
- 3-комнатные с общей площадью 55-58 м²;
- 2-комнатные с общей площадью 30-46 м²;
- 1-комнатные с общей площадью 31-33 м².
Жилая площадь комнат:
- Гостиные комнаты – от 14 м²;
- Спальные комнаты – от 8 м²;
- Детские комнаты – от 6 м²;
- Кухни – от 4,5 м².
Виды типовых планировок, серии, фото, описания и годы постройки хрущевок
СЕРИЯ 1-464 – (год постройки 1960-1967)

Хрущевки — серия 1-464
Пяти ярусные дома панельного типа с четырьмя квартирами на одной площадке.
Особенности:
Высота помещений – 2,5 м;
Санузел совмещенный;
Кухня – 5,8 м²;
Особенности: кладовка, шкафы встроенного типа, балкон.
Площадь гостиной в 1-но комнатных «хрущевках» этого типа составляет 19 м², в 2-х и 3-х комнатных 17,3 м²; 19 м² и 20,4 м² в зависимости от планировки. Кладовая размещается в конце спальни или между 1 и 2 спальней. Выход на балкон из гостиной. Санузел совмещенный рядом с кухней.
СЕРИЯ 1-335 – (год постройки 1963-1967)
o-builder.ru
Планировка хрущевки: 80 фото лучших проектов и особенности работ
При приобретении данной недвижимости необходимо уделить пристальное и особое внимание планировке помещения. Однако, главным образом необходимо детально осмотреть спальню. Дело в том, что зачастую проектировка и расположение спальни в таких квартирах были недалеко от входной двери, а это приводит к определенному дискомфорту.
При этом, можно слышать посторонние звуки, которые могут доноситься с лестничной площадки, так как звукоизоляция таких строений практически отсутствует, а это может доставлять некоторые неудобства и дискомфорт.

Поэтому, что бы избежать проблем подобного рода наша статья поможет вам решить их. Также в данной статье можно найти много уникальных и красочных фото планировки хрущевки. Кроме этого здесь можно найти полезные и необходимые практические советы, а также важные рекомендации.
Краткое содержимое обзора:
Планировка однокомнатной квартиры в хрущёвке
Безусловно, жилье второй половины прошлого столетия, так называемые хрущевки, как правило, имели маленькие габаритные размеры. При этом, в помещениях подобного типа кухни маленькие и тесные комнаты, смежный санузел, а в дополнение к такому набору еще и весьма не высокие потолки, не более, чем 2,50 метров.

Казалось бы, что недвижимость подобного рода имеет только одни явные недостатки да возможно это так, но несмотря на все вышеперечисленные нюансы, это все можно сделать в достоинства.
При помощи вашей фантазии и воображения можно в корне преобразить старую хрущевку до неузнаваемости.
Итак, для начала рассмотрим вариант с однокомнатной хрущевкой
Для подобного типа квартиры характерна одна важная особенность. Дело в том, что создать одну только спальню не представляется возможным, поэтому комната будет универсальной, и она будет иметь гостиную, прихожую, личный кабинет, спальню. А по мере необходимости можно сделать еще и детскую комнату.

При этом в комнате должно быть все четко и максимально, компактно, удобно расставлено на своих местах, не должно быть ничего лишнего. По возможности установите в комнату кровать-трансформер, это весьма практично и удобно. Этот предмет интерьера способен сэкономить значительную площадь в помещении.

Также рекомендуется наличие в такой комнате универсальных столов с выдвижной конструкцией, которая по мере необходимости может увеличить стол, что очень удобно при приеме гостей более четырех человек. Все это является основной составляющей однокомнатной хрущевки.
В помещениях подобного типа наблюдается нехватка свободного пространства, поэтому очень важно разработать варианты планировки. Многие дизайнеры решают эту задачу при помощи расширения других комнат, например коридора, что позволит незначительно увеличить жилую площадь в помещении.

А вот если очень серьезно заняться балконом, если его хорошо остеклить современными оконными рамами, а так же его хорошо утеплить, то можно получить вполне удобное и комфортное место для отдыха. При желании там можно установить небольшое кресло-кровать, на котором можно хорошо отдохнуть.
Планировка двухкомнатной квартиры в хрущёвках
Владельцам данной недвижимости в определенной степени значительно повезло в размерах, так как в таких квартирах есть комната, которая способна называться спальней. Так же при желании и наличии денег, можно увеличить и площадь балкона.

При этом такое решение необходимо согласовать с соответствующими инстанциями. В конечном итоге балкон может быть переоборудован под личный кабинет или небольшую уютную комнату отдыха.
Немаловажное значение при планировке двухкомнатной хрущёвке имеет расположение кровати и ее окружающее обустройство необходимыми для жизни бытовыми предметами.

Поскольку кровать имеет весьма внушительные габариты, то соответственно она на четверть занимает место в спальне, при этом необходимо еще и обустроить комнату, например, установить шкаф-купе, а также поставить маленькую прикроватную тумбочку. Однако важно следить за тем, что бы в комнате было удобно и свободно перемещаться.

Планировка трёхкомнатной квартиры в хрущёвках
Главная особенность обустройства данной комнаты заключается в том, что такие помещения имеют небольшое малогабаритное строение как кладовка. При желании ее можно с легкостью переделать в красивый и современный шкаф для хранения одежды либо для других предметов, которые необходимо скрыть из вида.

Сложность планировки трехкомнатной квартиры заключается в том, что необходимо четко и правильно оформить все три комнаты только самым необходимым, не перегружая интерьер лишними декоративными элементами и предметами обихода.
Не следует загромождать комнаты большой крупногабаритной мебелью, мебель должна быть компактной и универсальной.
Общие рекомендации
Если вам все-таки по душе крупногабаритная мебель, ее можно установить при условии, что она будет иметь большие зеркальные двери. В данном случае зеркальные двери способны создать визуальный зрительный эффект увеличенной комнаты.

Следует также отметить, что современная планировка не всегда может быть во благо. Если вам, например, захочется вдруг установить многоуровневый потолок из гипсокартона, с современной подсветкой этого делать не рекомендуется.
Дело в том, что сами по себе потолки в хрущевках имеют низкую высоту, а при установке такого потолка это еще уменьшит его высоту. Поэтому любое решение необходимо четко и правильно обдумать, а только затем приступать к работе.
Фото планировки хрущевки




































dizainmetrov.ru
Типовые серии хрущевок — фото планировок.
С 1957 года, после принятия закона, который предусматривал устранение излишеств в проектировании домов, в СССР стали возводиться здания нового типа. В народе такие дома получили название «хрущевки» (производное от фамилии генерального секретаря ЦК КПСС Н.С. Хрущева). Такие дома получили второе название – хрущебы, в основном, из-за неудобной и непропорциональной планировки комнат, узких коридоров и пролетов площадок, тонких стен и как результат – ужасной шумоизоляции. В этой статье мы расскажем о том, что такое типовые серии хрущевок, постараемся выделить основные плюсы и минусы этих зданий. Особенности планировки предоставим в виде описаний и фото.
Типовые серии хрущевок: основные плюсы и минусы домов
Давайте рассмотрим основные характеристики квартир и определим особенности каждой серии хрущевок, которые возводились на протяжении 27 лет. Стоит заметить, что изначально хрущевки предполагалось использовать, как временное жилье и эксплуатационный срок здания составлял от 25 до 50 лет. Но, как известно, в таких домах проживают люди и в наше время. К минусам хрущевок можно отнести плохую шумоизоляцию и теплоизоляцию (зимой прохладно, а летом слишком жарко в квартире), не всегда удачную планировку квартиры и подъезда: узкие коридоры, маленькую кухню, отсутствие мусоропровода и очень часто лифта. К основным плюсам таких домов можно отнести невысокую стоимость.
К основным плюсам таких домов можно отнести невысокую стоимость жилья и развитую инфраструктуру вокруг здания. Как правило, недалеко от хрущевок есть садики, школы, магазины и отличная транспортная развязка. Если денежных средств на покупку квартиры мало, то хрущевка – не самый плохой вариант. Тем более, такие здания в Москве и других городах России, подлежат сносу, в этом случае владельцы получают новенькое жилье, или реконструкции и перепланировке.
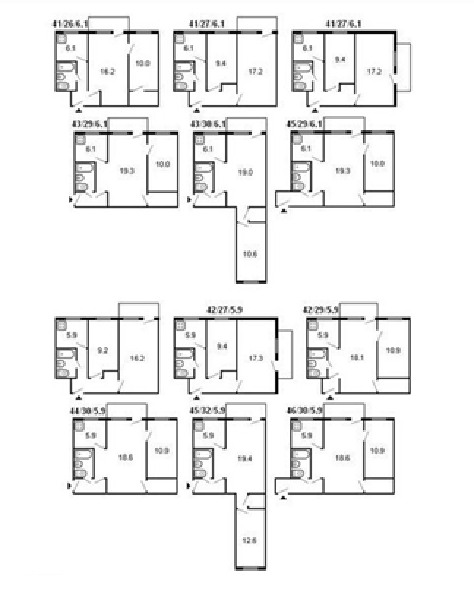
Серия 1-464 (1960 – 1967 гг.)
Общий чертеж:
Одной из самых популярных в СССР серий хрущевок стала 1-464 (1960 – 1967 гг.). Это панельный дом с 5 этажами, редко можно встретить 3 и 4 этажные здания. Во всех квартирах есть балконы (также дополнительные кладовки), а вот лифты не предусмотрены и жителям здания приходиться подниматься и спускаться по ступенькам, что достаточно тяжело пожилым людям, семьям с маленькими детьми. Санузлы в квартирах совмещенные, в подъезде нет общего мусоропровода, а количество квартир на площадке составляет 4. Высота потолков в квартирах – 2,5 м2, кухни менее 6 м2, если быть точнее – 5,8 м2. Квартиры 1, 2 и 3-х комнатные.
Картинка – чертеж:
1 комнатная:
2 комнатная:
3 комнатная:
Серия 1-335 (1963 – 1967 гг.)
С 1963 по 1967 гг. территория застраивалась домами серии 1-335. Это тоже панельные здания, с высотой потолков 2,54 м., балконами в каждой квартире, совмещенными санузлами, отсутствием лифта и мусоропровода. Площадь кухни немного больше, чем в предыдущей серии – 6,2 м2, площадь потолков – 2,5 м. На площадке располагается четыре квартиры – от 1 до 3-х комнатной. Помимо балконов в квартирах есть дополнительные кладовки и встроенные шкафы.
1 комнатная:
2 комнатная:
Серия 1-434 (1958 – 1964 гг.)
Эта серия строилась с 1958 года по 1964 год, в различные года застройки немного видоизменялись планировки квартир. Так, например, в зданиях 1958 года в однокомнатных квартирах площадь жилой комнаты составляла 18,6 м2, а в 1959 году она уменьшилась до 18,2 м2, в 1969 г. – площадь комнаты составляла 17,7 м2. И так во всех типах квартир площадь жилых помещений варьировалась в сторону уменьшения и увеличения. А вот площадь кухни осталась неизменной – 5,8 м2, как и высота потолков – 2,5 м. Дома – кирпичные, совмещенные санузлы, а в каждой квартире есть балкон, кладовая и встроенные шкафы.
Картинки – чертеж (по годам)
1 комнатная 1958 год
1 комнатная 1959 год
1 комнатная 1960 год
1 комнатная 1961 год
1 комнатная 1964 год
2 комнатная 1958 год
2 комнатная 1959 год
2 комнатная 1960 год
2 комнатная 1964 год
3 комнатная 1958 год
3 комнатная 1959 год
3 комнатная 1960 год
3 комнатная 1961 год
3 комнатная 1964 год
Серия 1-467 (1959 – 1969 гг.)
Последняя серия, которую мы рассмотрим, строилась с 1959 по 1969 год. Это блочные дома, высота потолков, как и в предыдущих сериях – 2,5 м, площадь кухни – от 6,6 м2 до 7,7 м2. Во всех квартирах (1, 2 и 3-х комнатных) есть балконы кроме 1 этажа. Санузлы в ранних версиях зданий — раздельные, а в поздних – совмещенные, отсутствует мусоропровод. К достоинствам квартир этой серии относят возможность их перепланировки, к недостаткам – смежные комнаты во многих квартирах. Картинка – чертеж:
Видео хрущёвок
Читайте далее:
comments powered by HyperCommentsbogiremonta.ru
Планировка хрущевки — 75 фото идей стильного дизайна в современном стиле
Как правило, после приобретения жилья возникает проблема планировки комнат, особенно, если такая жилая площадь является Хрущевкой.
В данном случае квартиры не очень-то отличаются крупногабаритностью, однако распределить имеющееся пространство и создать максимальный уют для жилья в ней все-таки придется.
В данной статье мы рассмотрим, каким образом осуществляется планировка квартир в хрущевках.
Несколько удачных вариантов планировки Хрущевки
Такого типа дома в основном имеют пять этажей и их построение относится к далеким 50-ым годам. Те времена отличались нехваткой жилых помещений.
Поэтому была создана особенная система постройки многоквартирных типовых зданий. В основном для этого использовались специальные готовые блоки, так как это значительно сокращало временные рамки, выделяемые непосредственно на строительство.
Сама квартира имела очень маленькое кухонное помещение (не более 6 квадратных метров), смежные комнаты и общий (совмещенный) санузел.
Еще одной отличительной особенностью является наличие низких потолков. Однако и такое жилье можно без особого труда преобразовать и сделать очень уютным.
Что касается однокомнатной хрущевки, планировка здесь сразу же исключает создание отдельной спальни. Здесь скорее комната будет выполнять сразу несколько важных и полезных функций. Главное грамотно подойти к разделению пространства на зоны.
Предметы мебели для планировки хрущевки лучше приобретать из класса трансформеров, причем к такой конструкции следует отнести даже двери.
Очень часто люди прибегают к увеличению комнатного пространства за счет коридора. Следует отметить, что имеет очень неплохая возможность застеклить и утеплить балкон, а при желании и возможности даже увеличить его площадь.
Таким образом появляется отличная возможность приобрести место для установки кресла-кровати.
Особенности облагораживания многокомнатных хрущевок
В планировка двухкомнатной хрущевки появляется уникальная возможность создать отдельную спальную комнату, что будет являться своего рода персональной территорией.
Балконную часть также стоит по возможности задействовать, оборудовав на нем небольшой кабинет для работы, причем его площадь также по желанию можно увеличить.
Такая процедура потребует затраты сил и времени, так как предварительно необходимо создать проект по увеличению балкона и поучить согласие на его осуществление в соответствующих инстанциях.
Помимо дополнительного рабочего места можно в итоге поучить еще и отдельный выход на него со стороны кухонной части.
Существует несколько наиболее востребованных вариантов планировки хрущевок:
«Трамвай». В данном случае существует только один способ расстановки мебели (по периметру помещения), что представлено на фото планировки хрущевки, причем наличие балконного пространства будет крайне необходимо.
«Распашонка». Лучше воспользоваться созданием подиума небольшого размера. Который будет включать в себя ящики выдвижного характера.
В данном случае отлично впишутся напольные светильники и шкаф-купе. При желании можно увеличить размеры стандартного подоконника и тогда он без особого труда сможет заменить традиционный туалетный столик. Это даст возможность разместить все необходимые вещи в пространстве вашей комнаты.
Что касается трехкомнатных апартаментов, то в данном случае одна из комнат будет в обязательном порядке находиться по соседству с кладовкой, это связано все с той же типовой планировкой хрущевки.
Именно она и должна быть спальной, а вот пространство кладовки можно переделать, например, в гардеробную.
Так комната получится менее нагруженной в плане предметов мебели, соответственно, свободного пространства будет намного больше.
Несколько общих рекомендаций
Для удобства создания идеального дизайна планировки хрущевки в однокомнатной квартире рекомендуется установить шкаф, наделенный относительно легкими фасадами из стекла или зеркала.
Это необходимо для того, чтобы он не выглядел слишком уж громоздко. Элементы мебели лучше выбирать легкие.
Стилистическим решением в данном случае окажется минимализм. Зонирование небольшого плана спальни лучше посредством цвета и фактуры.
А вот от чего стоит в обязательном порядке отказаться, так это от потолков различного уровня, созданного из гипсокартона.
Фото идей планировки хрущевки
topdizajn.ru
Планировка хрущевки: варианты 1,2,3 комнаты
Массовое возведение панельных и кирпичных жилых зданий, или хрущевок, с упрощенной планировкой квартир, небольшими комнатушками и низким потолками, до сих пор считается вынужденной мерой в строительстве, направленной на обеспечение послевоенного поколения более-менее сносным жильем. Хотя на самом деле на то, чтобы массово строить что-либо более удачное в смысле планировки комнат, просто нет ресурсов разработчика, так как дома строились, как на конвейере. За образец были взяты варианты планировки хрущевки на 2 комнаты, и, отталкиваясь от типового жилья из двух раздельных комнат, практически на ходу комбинировались хрущевки на 1, 3 и даже 4 комнаты.


Что представляет собой двухкомнатная хрущевка
За двадцать лет интенсивного строительства использовалось несколько проектов и серий хрущевок, квартиры строились из железобетонных панелей или кирпича, в четырех и пятиэтажном исполнении, с высотой потолков 250 и даже 270 см, но внутренняя планировка помещений придерживалась примерно одной и той же схемы.
Практически все квартиры, за исключением блочных вариантов с тремя комнатами, строились по одним и тем же характеристикам:
- Общая площадь планировки двухкомнатной квартиры в хрущевке составляла от 30 до 46 квадратов, из них 8 м2 отводились для спальной, 4,5 м2 – для кухни, остальное для зала – 14 м2, коридора и вспомогательных помещений;
- Зал в планировке всегда был проходным, то есть, чтобы попасть в наиболее удаленную спальную комнату, приходилось пересекать гостиную или зал;
- Санузел для хрущевки мог быть раздельным с ванной, но всегда располагался в одном блоке с кухней и коридором, таковы особенности планировки водных и канализационных коммуникаций.
В хрущевках любой планировки всегда отсутствовал лифт и вспомогательные помещения для обустройства электрощитовой, запорной водопроводной и газораспределительной арматуры. Все жизненно важные краны и вентили либо перенесены в подвальное помещение, либо находились на фасаде здания.


Важно! Стоит отметить, что качество строительства кирпичных хрущевок было намного выше панельных коробок.
Если здания из силикатного и красного кирпича, по некоторым оценкам, могут простоять до 100 лет, то для панельных домов конструкции из железобетона теряют несущие способности через 40-45 лет эксплуатации. Большинство панельных хрущевок первого проекта находятся в аварийном состоянии из-за ошибок в планировании и недобросовестного обслуживания зданий.
Планировка двухкомнатных хрущевок
На долю хрущёвок в крупных городах приходится примерно 70% жилого фонда. Для районных центров и поселков вклад хрущевок может доходить до 95%. Это связано с тем, что крупные города с середины 70-х не застраивались хрущевками, исключения делались для жилых районов, примыкающих к промышленным зонам. Для райцентров хрущёвки с вариантами улучшенной планировки комнат строились еще 5-7 лет.
Строительство хрущевок выполнялось по нескольким сериям планировок:
- Первая серия 464, строились с 1960 г. по 1967 г.;
- Проект 335, здания возводились 1963-67 г.;
- Серии 1-434 и1-434С использовались в качестве базовых проектов с 1958 по 1964 г.


Положение стало исправляться только с внедрением улучшенных железобетонных панелей, с 70-х в бетон стали добавлять керамзит, улучшилось качество цемента, увеличили толщину панели, что отчасти снизило остроту проблемы.
Панельные двухкомнатные хрущевки
Базовой в строительстве панельных хрущевок была 335 серия.


Отличительной особенностью планировки квартиры было параллельное расположение комнат. Преимуществом проекта считается относительно большая кухня в 6,2 квадрата и неплохие возможности для перепланировки. Существенным недостатком считается совмещенный санузел. Дверь на балкон выполнялась из гостиной.
Из панелей строились также хрущевки 464 проекта, в котором использовались те же принципы планирования, что и в 335 серии. В проекте планировкой комнат предусмотрена уменьшенная по площади кухня и появление непроходного варианта зала.


Как правило, на одной площадке размещалось четыре квартиры с разным количеством комнат, чаще всего это были варианты с одной однокомнатной, двумя двухкомнатными и одной трехкомнатной квартирой. Квартиры первого этажа отличались отсутствием балконов.


Сегодня наиболее популярная тема вариантов перепланировки панельных двухкомнатных хрущевок касается двух основных моментов – расширение помещения кухни за счет использования коридора, ведущего из прихожей на кухню и примыкающего к ванной и туалету. В этом случае стену между ванной и кухней разбирают, саму ванну переносят на территорию коридора. Такой вариант планировки достаточно прост в реализации, так как стенки, подлежащие сносу и новой планировке, выложены из кирпича или гипсоблока. В результате кухня может быть увеличена на 1,8 м2.
Кирпичные варианты двухкомнатных хрущевок
К строительству кирпичных пятиэтажек пришли после развертывания интенсивного строительства хрущевок в районных центрах. Строить из силикатного кирпича оказалось проще, чем возить железобетонные панели за 70-80 км от ЖДК, расположенного в пригородах областных центров.
Проект №434С был ориентирован в первую очередь на возможность возведения упрощенной планировки в условиях ограниченного использования кранов и подъёмной техники. Чаще всего это были четырех и пятиэтажные дома. Планировка квартир практически копировала панельные дома. С конца 60-х появились варианты планировки, в которых комнаты располагались продольно. Отчасти это объяснялось необходимостью улучшить соляризацию помещений и уменьшить количество однокомнатных квартир в доме.


Больная тема всех хрущевок – площадь кухни уменьшилась до 5,9 м2, но появились лоджии и увеличилась площадь кладовки. В остальном кирпичные хрущевки менее удобны для перепланировки. В качестве одного из наиболее распространенных вариантов новой планировки предполагается перенос двери на кухню к внешней стенке здания или даже частичный снос стены. В результате помещение кухни как бы присоединяется к залу, а потребность в узком и неудобном коридоре отпадает.
Особенности перепланировки хрущевок
Основная проблема изменения планировки комнат связывается с необходимостью регистрировать переделки в БТИ. Сделать новые документы достаточно проблемно, поэтому все переделки комнат владельцы стараются не афишировать.


Традиционно переделке в хрущевке подвергаются, прежде всего, кухня и коридор. На схеме приведен наиболее популярный вариант улучшенного планирования комнат хрущевки.


Прежде всего, уменьшена площадь коридора за счет выноса кладовки. Далее в таком варианте планировки сносом кирпичных перегородок комнаты объединяются в одну и соединяются с кухней, без межкомнатных дверей. Вход в блок туалет-ванная комната теперь из прихожей, что достаточно удобно и практично. Пространство кухни в данном варианте при необходимости занимает до одной четвертой общей площади зала.
Существенно изменена планировка туалета и ванной комнаты. За счет совмещения удается передвинуть ванну под стену, не меняя точки установки унитаза, за которым находится канализационный стояк. От кухни к унитазу идет канализационная труба, поэтому физически невозможно выполнить планировку по-другому.
Заключение
Недостатком подобного варианта планировки комнат является слишком маленькое пространство прихожей, места для обуви и верхней одежды будет достаточно, но находиться в помещении сможет только один человек. Кроме того, бытовая техника, без которой сегодня не обходится ни одна современная кухня, будет серьезной проблемой для тех, кто работает или отдыхает в зале, поэтому проем между залом и кухней придется закрывать раздвижными дверями или стационарной звукоизолирующей ширмой.
bouw.ru
Планировки 1,2,3,4-х комнатной квартиры в хрущевках
При покупке квартиры следует обращать внимание не только на её цену, но и на планировку. Особое внимание требуется уделить спальной комнате – хорошо, если она будет максимально удалённой от входной двери. При таком расположении все посторонние звуки, которые исходят с коридорной подъездной лестницы, не будут беспокоить владельцев жилья. Кроме этого, хорошим решением для спальни будет ниша, где можно сделать гардеробную (при глубине меньше чем 120 см удобнее будет сделать шкаф-купе). Сейчас мы подробно рассмотрим типовые планировки квартир в хрущёвках и варианты их оформления.
Одна из типовых планировок квартиры в хрущёвкахПятиэтажные проектные дома, называемые «хрущёвки», впервые появились в середине 1960-ых годов. В то время в городах стояла острая проблема нехватки жилья, но благодаря разработанному методу быстровозводимых зданий, этот вопрос был решён. Всего несколько месяцев – и дом в несколько этажей готов! Его строили уже из готовых блоков, поэтому они и назывались быстровозводимыми. С новым видом строительства пришли изменения и в проекты городских кварталов. Одновременно планировалась целая инфраструктура. В каждом микрорайоне строились сразу свои детские учреждения (школы, детские сады, магазины и т.д.).
Стандартный 5-этажный дом советской эпохиВернуться к оглавлениюСодержание материала
Планировка однокомнатной квартиры в хрущёвке
В квартирах 60-х годов, конечно, было не всё удобно: маленькие кухни- 6-7 кв. м, смежные комнаты, совмещённый санузел. Ко всему этому ещё и довольно низкие потолки, высотой от 2.45 м до 2.55 м. Если вы всё-таки стали обладателем такого раритета, то особого повода для беспокойства нет, так как на сегодняшний день есть вполне доступные способы превратить минусы этой квартиры в плюсы.
При помощи практичных идей можно преобразить «бабушкино наследство» в удобный и уютный уголок. Рассмотрим самую простую однокомнатную квартиру.
Стандартная планировка однокомнатной квартиры в хрущёвкеВ квартире-хрущёвке с одной комнатой не удастся обустроить отдельную спальню. К сожалению, комната будет многофункциональной: и гостиной, и кабинетом, и спальной комнатой, и даже детской. От кроватей и прикроватных тумбочек тоже лучше отказаться. Но как тогда сделать такую комнату уютной и хоть более-менее удобной?
Незаменимыми помощниками в таком жилище послужат трансформеры, которые были широко распространены всё в тех же 60-х.
Наиболее популярной считается диван-кровать, которая обладает самыми различными формами: «книжка», «раскладушка», диван-кровати, имеющие выдвижной механизм и с откидывающимися боковушками. Но, безусловное лидерство нужно отдать дивану гипертрансформеру. В нём отгибается почти всё, что есть – с лёгкостью можно убирать спинку, подлокотники, подушки и т.п.
Диван-трансформерКроме таких многофункциональных диванов, не обойтись и без раздвижных столов, стеллажей и лёгких полочек разных видов. Удачным решением будут и раздвижные двери. Вот, пожалуй, и весь основной ассортимент мебели для квартир подобной планировки.
Простой раздвижной столСравнительно небольшая площадь вызывает нехватку пространства в квартирах с одной комнатой, а уж тем более в наших хрущёвках. Придётся приложить усилия для высвобождения каждого сантиметра жилого пространства. Можно прибегнуть к такому приёму, как увеличение площади комнаты или санузла и кухни за счёт расширения коридора.
Остеклив и утеплив балкон, вы можете создать очень удобное место. Еще лучше, если эта зона станет жилой по заранее разработанному и утверждённому проекту. Можно поместить там, например, кресло-кровать.
Пример дизайна однокомнатной хрущёвкиВернуться к оглавлениюПланировка двухкомнатной квартиры в хрущёвках
Обладателям «хрущёвок» с двумя комнатами в доме повезло больше. Там уже есть персональная территория, которая может быть полноценной спальней.
Балкон можно приспособить под кабинет, и если денежные средства позволяют, то площадь лучше увеличить (не забывая о необходимости разработки архитекторского проекта для увеличения балкона и согласования его в нужных инстанциях). Благодаря такому способу можно получить дополнительный метраж рабочей зоны. Если балкон оставить незастеклённым, то можно сделать отдельный выход с кухни.
Двухкомнатные «хрущёвки» имеют разные типы планировки: «распашонка» и «трамвай».
Планировка двухкомнатной хрущёвки по типу «распашонка»На чертеже показана наиболее выгодная по удобству расстановка мебели, хотя и в таком виде свободного пространства остаётся очень мало. Как раз по этой причине балкон может существенно облегчить проблему нехватки пространства. Если он будет утеплён, то появятся ещё и недостающие метры жилья, на которых при желании можно разместить еще что-нибудь (туалетный столик, место для работы и т.д.).
Вроект дизайна интерьера 2-х комнатной хрущёвкиПри размере спальной комнаты 2,40х5.50 по типу «трамвай» вполне можно разместить двуспальную кровать. Только всё это доставит некоторые трудности при уборке и лёгком передвижении. Отличным решением с таким видом планировки станет сооружённый подиум с полноценными выдвижными ящиками для хранения белья и постельных принадлежностей. На полу по сторонам матраса удачно будут смотреться светильники.
Планировка 2-х комнатной хрущёвки по типу «трамвай»Напротив кровати можно обустроить шкаф-купе или оборудованную гардеробную, где удобнее всего хранить одежду и прочие принадлежности: гладильную доску, пылесос и прочие необходимые вещи. Кроме этого, можно сделать и туалетный столик – нужно всего лишь произвести замену старого стандартного подоконника, увеличив при этом ширину нового. И перед вами уже – уютная, комфортная спальная зона.
Вернуться к оглавлениюПланировка трёхкомнатной квартиры в хрущёвках
Как правило, трёхкомнатная хрущёвка всегда имеет кладовку, которая находится по соседству с комнатой. Этот момент нужно учитывать при выборе спальни, так как смежный чулан отлично подойдёт для гардеробной. Не стоит волноваться, если не останется места для хранения белья и постельных принадлежностей – для этих целей отлично подойдёт простой комод.
Планировка 3-х комнатной квартиры в хрущёвкеВернуться к оглавлениюОбщие рекомендации
Если большой вместительный шкаф со стеклянным или зеркальным оформлением поставить в однокомнатную квартиру, то можно визуально немного расширить пространство. Выбирать следует лёгкую, нетяжёлую мебель. Лучший стиль для такого жилья – минимализм, который, кстати, тоже из 1960-х. Ознакомьтесь с дизайном скандинавской мебели. Эта мебель очень хорошо впишется в интерьер небольших квартир.
Немаловажное значение имеет также зонирование малогабаритных спален, хотя бы по цвету и фактуре. А вот многоуровневый гипсокартонный потолок делать не следует, он «украдёт» и без того не хватающую высоту.
На видео можете посмотреть, как был сделан дизайн интерьера в маленькой хрущёвке.
proekt-sam.ru
описание и типовые варианты для двух- и четырехкомнатных квартир в кирпичном доме, комнаты в пятиэтажках

«Хрущевки» остаются достаточно распространенным вариантом жилья на территории России. Такие квартиры бывают разными по метражу и по своей планировке. Если вы собираетесь делать в «хрущевке» ремонт, хотите обновить отделку, поменять мебель или внести современные элементы в привычный дизайн, важно учитывать все особенности такой квартиры. В данной статье мы рассмотрим планировку «хрущевки» и способы максимально эффективного использования пространства в ней.
Особенности и характерные черты
Пятиэтажки 60-х годов, как правило, имеют ограниченный метраж, узкие проходы, низкие потолки и совмещенный санузел. В основном, «хрущевки» – это однокомнатные и двухкомнатные квартиры. Изредка строились дома и с более престижной планировкой жилплощади – это могла быть трехкомнатная или четырехкомнатная квартира.
Сейчас многие продолжают жить в «хрущевках» или приобретают их в качестве сравнительно недорогого жилья.

Иногда в квартирах делают перепланировку, а иногда удобно обустроить пространство можно всего лишь с помощью косметического ремонта и правильной расстановки мебели.

Если вы запланировали ремонт в «хрущевке», следует учитывать характерные особенности такой жилплощади, ее преимущества и недостатки:
- кирпичные дома позволяют сохранять в квартирах комфортную температуру даже жарким летом, поскольку стены медленно прогреваются. Панельные дома менее комфортны, поэтому сейчас в них нередко устанавливают кондиционеры;
- практически все «хрущевки» снабжены хорошей отопительной системой и сохраняют тепло зимой. К исключениям стоит отнести разве самые первые построенные дома такого плана – в них слишком тонкие стены между комнатами;

- советские пятиэтажные дома обычно обладают хорошей звукоизоляцией;
- в некоторых квартирах встречаются навесные балконы. С учетом того, что дома достаточно старые, такие элементы могут быть в плохом состоянии. Однако, если сделать там ремонт, наличие балкона станет большим плюсом в планировке квартиры. На его территории можно отдыхать в летний период, разводить цветы или просто хранить вещи, которые не уместились в комнатах. В просторных «хрущевках» можно встретить и балкон, и лоджию.

Описание
Удачные варианты планировки квартиры зависят от того, какая именно у вас «хрущевка». Дома отличаются друг о друга материалами и количеством этажей, а квартиры имеют разное количество комнат и метраж. Вариантов «хрущевок» достаточно много: 2-х и 4-х комнатные имеют совершенно разную планировку.

Чаще всего это пятиэтажные дома, хотя встречаются и более высокие строения – этот фактор практически не влияет на внутреннее убранство квартиры. Если же вы хотите делать перепланировку, учитывайте, что кирпичные «хрущевки» очень удобны для этих целей, а в панельных строениях это будет реализовать труднее.

Рассмотрим самые часто встречающиеся варианты планировки хрущевок:
- большой популярностью пользуются однокомнатные квартиры – это наиболее экономичный вариант жилья для маленьких семей и людей, которые живут одни. Чаще всего такие типовые квартиры имеют маленькую кухню 6-7 кв м, комнату 19-20 м, узкую прихожую и совмещенный санузел: общая площадь составляет около 31 кв м. Как правило, кухня и комната имеют смежную стену, а ванная комната располагается справа от входа в квартиру.
Так как пространство подобной «хрущевки» крайне ограничено, важно создать лаконичный и функциональный интерьер.

- двухкомнатные «хрущевки» на 42 кв м имеют разные типы планировки. Иногда по центру располагается кухня, а по бокам – две примерно одинаковые комнаты. В других случаях кухня расположена справа, а слева – две комнаты, расположенные одна за другой и балкон. Для семей наиболее удобным считается первый вариант, так как проходная комната может вызывать ряд неудобств, если это будет спальня или детская. Чаще проходной делают гостиную;

- трехкомнатные квартиры нередко имеют площадь 48 кв м. Это достаточно просторные жилища с балконом, которые также имеют кладовку возле одной из комнат, отдельную ванную комнату и туалет. Кухня, прихожая и санузел по-прежнему остаются малометражными, а наибольшее пространство выделяется под три приблизительно равные комнаты. Подобные квартиры комфортны для проживания семьи с детьми;

- четырехкомнатные квартиры встречаются редко – это дома улучшенной планировки на 58 кв метра. Отличительными чертами подобных квартир также являются узкие проходы, миниатюрная кухня и сравнительно небольшие комнаты. Впрочем, для больших семей разделение всей площади на четыре комнаты окажется удобным: так у каждого члена семьи будет свое личное пространство. Нередко именно в «хрущевках» с подобной планировкой размещается и лоджия, и балкон, что является безусловным плюсом.
Разграничение пространства в вашей квартире должно зависеть от общего метража, а также от количества членов семьи. Лучше всего, когда у каждого жильца если индивидуальное пространство в доме – сделать это можно даже в рамках одной комнаты. Также разграничение жилплощади будет зависеть и от ваших интересов и увлечений.

Как лучше разграничить пространство?
В «хрущевках» вполне можно уютно и функционально обставить пространство, так что малый метраж не будет вас беспокоить. Главное, правильно выбрать дизайнерский проект для квартиры. Для внешнего вида будет большую роль играть отделка и освещение, а для практических целей нужно приобрести удобную мебель и грамотно ее разместить.

Например, если вы любите собирать гостей, вам стоит задуматься над просторной столовой, если вы работаете дома, стоит выделить пространство под кабинет, а, если вы разводите комнатные растения, под них следует выделить самую светлую комнату.

Отделка
Отделка квартиры – это первое, что бросается в глаза. С помощью правильной отделки даже типовую «хрущевку» нетрудно превратить в современную и стильную квартиру с самобытным дизайном. В первую очередь значение имеет отделка стен. Если вы планируете в своей «хрущевке» косметический ремонт, следует учесть ряд важных нюансов:
- чтобы сделать пространство квартиры визуально более светлым и просторным, стоит отдать предпочтение пастельным тонам. Если вам хочется использовать темные оттенки цветов, лучше делать темные стены в прихожей, в ванной и на лоджии;

- сейчас все чаще люди отказываются от обоев и прибегают к покраске стен. Такие варианты могут смотреться очень стильно. Если стены у вас идеально ровные и гладкие, можно просто покрыть их тонким слоем краски – это нетрудно сделать даже самостоятельно. Если же на стенах имеются дефекты, это можно скрыть, выбрав окрашивание с текстурой. В этом случае краска может наноситься мелким напылением или рельефными мазками, что придаст интерьеру особенную изюминку;

- если вы хотите поклеить в квартире обои, вам лучше всего выбирать лаконичные модели. Подойдут однотонные варианты или же полотна с мелким узором. Сейчас можно найти обои в тонкую полоску, мелкий цветочек или же покрытия с малозаметными растительными и абстрактными принтами. От фотообоев и обоев с крупными изображениями лучше отказаться, так как они будут визуально сужать пространство.

Мебель
Мебель в дизайне интерьера «хрущевки» так же имеет немалое значение. Особенно вдумчиво следует отнестись к выбору предметов интерьера в тех случаях, если у вас маленькая квартира-полуторка или большая семья. Для того, чтобы дизайн смотрелся гармоничным, а мебелью было удобно пользоваться, попробуйте учесть следующие моменты:
- сейчас большой популярностью пользуются угловые шкафы. Это отличное решение для небольшой прихожей, маленькой спальни или лоджии. Пространство по углам мы зачастую не используем никак, однако, если разместить там соответствующий шкаф, он окажется достаточно глубоким и вместительным, но не будет мешаться в проходе.

Сейчас можно найти подобные модели с дверцами для одежды или шкафы с открытыми полками для книг и посуды.

- антресоль так же может стать удачным вариантом для хранения вещей. Нередко ее размещают в прихожей, на лоджии или в кладовке, однако можно повесить ее и в одной из комнат. Учитывая низкие потолки в «хрущевках», лучше выбирать длинные и невысокие ящики;

- складной обеденный стол – это идеальное решение для маленькой кухни в «хрущевке». При желании его можно будет собрать и сделать очень компактным, если у вас маленькая семья, а, если вы позовете гостей, его можно будет разложить. Иногда стол ставят не на кухне, а в проходной комнате;

- встроенная бытовая техника также поможет сделать ваш интерьер максимально лаконичным, современным и функциональным. Для маленькой семьи можно выбрать уменьшенный холодильник, встроенный в шкаф, встроенную маленькую плиту и духовку;

- для хранения вещей можно подобрать высокие шкафы до потолка. Это актуально для кухонного гарнитура и платяных шкафов. Можно также приобрести миниатюрную складную лестницу, чтобы легко доставать все необходимое с верхних полок.

Освещение
Правильное освещение в малометражной квартире позволит расставить акценты и разделить пространство на зоны. Рассмотрим наиболее удачные варианты освещения в «хрущевке»:
- для прихожей хватает одного источника света – это может быть любая достаточно яркая люстра;

- ванная комната в «хрущевках» обычно маленькая, поэтому там тоже можно ограничиться одной лампой. Хорошо, если она будет располагаться возле туалетного столика с зеркалом – максимально яркое освещение возле зеркала имеет важное значение;

- для кухни дизайнеры рекомендуют выбирать два источника света – основной и дополнительный. Светлую люстру стоит разместить в центре, а над кухонным гарнитуром следует расположить дополнительные лампы для удобства приготовления пищи;

- в комнатах может быть один или несколько источников света. Это будет зависеть от того, хотите ли вы выделить в одном помещении несколько зон.
Если вам не нужно разграничивать площадь, вполне подойдет одна яркая люстра.

Удачные варианты перепланировки
Многие сейчас пробуют делать перепланировку в «хрущевках». Прежде, чем приступать к такой работе, необходимо ознакомиться с планом дома и узнать, какие стены у вас несущие. Чаще всего делают следующие варианты перепланировок:
- из однокомнатной квартиры можно сделать студию, если вас не устраивает маленькая кухня. Этот вариант подойдет для проживания одного человека;
- если у вас в двушке есть проходная комната, ее можно объединить со второй и сделать просторную однокомнатную квартиру;
- в трехкомнатных и четырехкомнатных квартирах также часто объединяют комнаты;
- чтобы, напротив, разделить пространство внутри комнаты, можно сделать арку, колонну или дополнительную стену – это актуально для больших семей в однушках и двушках.
Все об особенностях перепланировки «хрущевки» смотрите в следующем видео.
dekoriko.ru