Вилла савой в пуасси – Вилла Савой. История одного дома — project Bauhaus
Вилла Савой. История одного дома — project Bauhaus

Объект: Вилла Савой / Villa Savoye
Построен: 1931 г.
Адрес: 82 Rue de Villiers, 78300 Poissy, Франция
Как проехать
Архитекторы: Ле Корбюзье (Le Corbusier), Пьер Жаннере
Архитектурные стили: Интернациональный стиль, Архитектурный модернизм, Баухауз

Вилла Савой — загородный дом в парижском предместье Пуасси, спроектированный Ле Корбюзье для промышленника Пьера Савой в 1929-30 гг.

В этой статье пойдет речь об архитектурном сооружении, поражающем воображение очевидцев и ставшем свидетелем поразительных времен: о Вилле Савой, модернистском доме, построенном в окрестностях Парижа в городе Пуасси.
С тех пор, как началось строительство в 1928 году, Вилла Савой стала плодом сотрудничества гениального дизайнера и архитектора Ле Корбюзье и его двоюродного брата Пьера Жаннерета.
Вилла Савой. История одного дома.
Вилла Савой была заказом семьи парижан Савой, её строительство завершилось в 1931 году. Семье не удалось наслаждаться своим домом долгое время, пришел нацистский режим и семью заточили в концентрационные лагеря, а Вилла Савой была конфискована и стала использоваться в военных целях. Словами трудно описать всю несправедливость такого преступления, однако, это, конечно, был не первый и не последний раз, когда нацистский режим наносил ужасающие удары по предметам искусства и архитектуры в Европе. Спустя некоторое время после наступления нацистской оккупации, Вилла Савой была захвачена вооруженными силами США и подверглась дальнейшим разрушениям.
После окончания войны Вилла Савой подвергалась многим изменениям собственников. После использования в качестве сарая! её приобрела соседняя французская школа, и, в конце концов, она была выкуплена французским правительством. Несколько раз она была близка к сносу, пережила интенсивные ремонтные работы, и в 1965 году была признана историческим памятником.





Вилла Савой является удивительным свидетельством того, каким устойчивым может быть здание, но, возможно, более важным значением её существования является напоминание о нежной и глубокой реальности искусства. Искусство способно вынести почти все, кроме разрушения людьми. В нашей ответственности относиться с осторожностью к строениям – нашему наследию и культурному значению.
Технологичность и новые решения строительства.
Вилла Савой представляет собой одно из первых строений современной архитектуры, где классические элементы переосмыслены для того, чтобы соответствовать технологическим достижениям и изменениям, необходимым в 20 веке. Это решение было смелым, новым и не соответствовало ожиданиям от архитектуры того времени. Вилла Савой стала первым полигоном для воплощения принципов «Пяти точек архитектуры», сформированных Ле Корбюзье.
Белый объемный куб, лишенный какого бы то ни было рисунка, возвысился в центре луга подобно кораблю приземлившихся пришельцев. Все пространство дома было буквально поднято над землей, отделившись от внешнего мира.

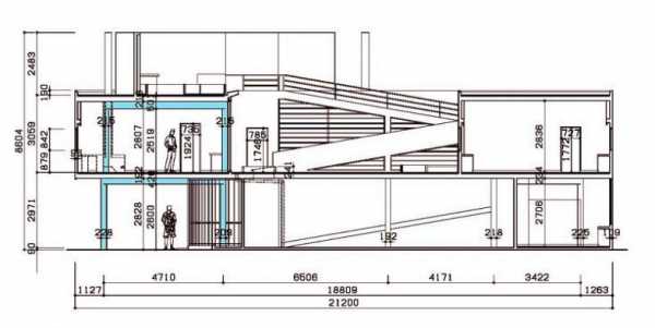
Первый уровень организован с машинной точностью, границы первого этажа определены траекторией разворота автомобиля семьи Савой. Все пространство организованно с целью комфортного передвижения по дому; винтовая лестница дает прямую вертикальную связь, а пандус формирует постепенное перемещение внутри дома, соединяя три уровня виллы и создавая прямое сообщение между внутренним и наружным пространством.

Лента окон обрамляет пейзаж подобно камере-обскуре, привнося внешний контекст внутрь дома. Крыша-терраса возмещает внешнее пространство поглощенное массой здания, позволяя свету проникать во всё пространство в доме.


Ле Корбюзье предвидел изменения в использовании материалов в связи с введением промышленного производства. Ранее дома воспринимались как твердые и тяжелые конструкции, в постройке которых обычно использовались камень, древесина и кирпич. Ле Корбюзье, привнес в архитектуру влияние эры машин, вдохновленный очарованием пароходов. Он стал использовать сталь, стекло и железобетон, отказавшись от тех непрактичных материалов и методов, которые использовались в то время. Вилла Савой построена из железобетона и каменных блоков. Белая штукатурка объединяет дом и скрывает те отдельные фабричные заготовки, которые были использованы в конструкции Виллы.



Внедрение технологии строительства из стандартных компонентов способствовало быстрому росту изготовления фабричных заготовок, что широко применяется на практике и по сей день. Переход к более стандартизированным процессам изготовления форм и производства развивался благодаря последующим технологическим достижениям, включая обработку лазером, 3D принтеры и робототехнику.
Эти технологии способствовали эволюции фабричных заготовок, масштабом от детали мебели до целого здания. Идеи Ле Корбюзье сумели прижиться в свое время и продолжают вдохновлять на эффективность и инновации и в наши дни.
Вилла Савой представляет собой один из самых значимых архитектурных проектов. Люди из ЛЕГО, одного из самых успешных брендов, подтвердили это, включив её в свою архитектурную серию, в компании таких сооружений, как «Сиднейский оперный театр», «Эмпайр-стейт-билдинг», «Дом над водопадом» Фрэнка Ллойда и 14 других культовых строений мира.


Интересные статьи:
probauhaus.ru
Вилла Савой Ле Корбюзье | История архитектуры

Вилла Савой – это спроектированный в начале 20-го века Ле Корбюзье загородный дом, расположенный в предместье Пуасси, недалеко от Парижа. Это удивительное архитектурное сооружение, имеющее особую историческую ценность. Посетители этого модернистского дома словно окунаются в эпоху столетней давности и становятся очевидцами тех поразительных времен. Строительство началось в 1928 году и для его возведения отлично постарались знаменитый архитектор вместе со своим двоюродным братом.
Ле Корбюзье – знаменитый французский дизайнер и архитектор, завоевавший признание своим мастерством. Виллы, которые он проектировал, отличались пуристскими формами, а основная идея фасада заключалась в простоте: минимум геометрии, орнамента, плоские крыши и большие горизонтальные оконные проемы. Все здания, в строительстве которых Ле Корбюзье принимал участие, были в светлых тонах и это его визитная карточка.

Архитектурные особенности
Вилла Савой имеет свои отличительные архитектурные особенности и установлена на пилоти – это столбы, предназначенные для поддержки здания. В пилотном проекте предполагалось, что вилла будет иметь три этажа, но в итоговом проекте было решено заменить верхний этаж на крышу-террасу. Владельцы страховой компании – чета Савуа пришли к выводу, что смета на строительство трехэтажной виллы слишком завышена, поэтому Корбюзье и пришлось изменить изначальный проект.
Первый этаж здания предназначен для хозяйственных нужд, как и все сооружения на пилоти. Вилла Савой – это дом, словно парящий в воздухе, его оконные проемы не прерываются на всех четырех сторонах. Корбюзье считал, что такая архитектурная особенность позволит посетителям оказаться в некой сюрреальности и им будет не скучно.
Вилла Савой имеет только один вход, большой стеклянный холл, в котором есть полукруглая стеклянная стена. За этой стеной отчетливо видно винтовую лестницу и, предусмотрительно установленный Ле Корбюзье, пандус.

Крыша у здания плоская и терраса захватила собой второй этаж. Сама вилла находится на лужайке и это задумка архитектора – внешне смотрится так, словно предмет аккуратно лежит на траве.
Ле Корбюзье стал основателем определенных тенденций в архитектуре строений и новые здания тех времен должны были соответствовать некоторым требованиям:
— наличие столбов, выступающих в роли основы (пилоти), поднимающей здание над землей;
— крыша-терраса с обязательным расположением на ней сада – своего рода дань природе, за отнятую растительность с места, где построили дом;
— очень большие горизонтальные окна, свободная планировка и свободный фасад.

Ле Корбюзье признался, что из нескольких вилл, которых он построил, Савой — самая значимая. Внешне это здание непримечательно, выглядит довольно скромно и небольшое по масштабу, но попав внутрь, мнение посетителя кардинально меняется. Можно смело назвать это здание скульптурой знаменитого французского архитектора.
Вилла Савой – это история одной семьи
В 1931 году данное сооружение было построено по заказу семьи Савой. Долго в этой Вилле хозяева не смогли прожить, потому, что при нацистском режиме граждан отправляли концлагеря и семья Савой не стала исключением. Здание нацисты конфисковали и использовали в своих военных целях. По всей стране граждане подвергались преступным действиям нацистов, а архитектура и исторические памятники страдали от их режима по всей Европе. Впоследствии Вилла Савой стала объектом вооруженных сил США и была сильно разрушена.
В послевоенные годы у виллы сменилось много собственников, и она стала выполнять функции хозяйственного помещения. Вернуть себе титул национального достояния, Вилле Савой удалось только после того, как ее выкупило французское правительство. Многочисленные реставрации крупных масштабов помогли вернуть этому зданию первоначальный вид, а с 1965 года Вилла признана историческим памятником.
В военные годы было разрушено много зданий по всей стране, многие исторические памятники нацистами приведены в разрушительное состояние, но Вилла Савой пережила ту войну. Она стала примером того, что правильно спроектированное здание может вынести достаточные нагрузки. Особое значение для почитателей искусства и истории эта вилла заслужила тем, что в ней таятся напоминания о нежной и, одновременно, глубокой реальности искусства. Разрушения людьми – единственный фактор, способный уничтожить искусство, но если относиться с предельной осторожностью к строениям, то культурное наследие будет передаваться в первозданном виде последующим поколениям.

Новые решения строительства
Вилла Савой стала первопроходцем в модернизации современной архитектуры и новаторстве. Это одно из первых зданий, в котором очень смело были переосмыслены классические элементы. Архитектура этого здания – первый шаг к изменению представления классического дизайна, соответствующий технологическим достижениям начала 20-го века.
Вилла Савой – это визитная карточка Ле Корбюзье и олицетворение его «пяти точек архитектуры». Это белый, парящий в воздухе куб без какого-либо орнамента, отделяющий все пространство дома от внешнего мира. При проектировании виллы учитывались даже самые мелкие детали, например: траектория разворота автомобилей семьи Савой стала критерием границ первого этажа. Внутренне пространство здания продумано также до мелочей – Винтовая лестница дает эффект вертикальной связи, а для комфортного перемещения по трем уровням виллы и сообщения с наружным пространством, установлен пандус.

Оконные проемы спроектированы так, что у находящегося внутри человека создается с единением природы и внешний пейзаж наполняет дом изнутри. Такой эффект присутствия мог достичь только Ле Корбюзье, благодаря своему большому таланту. Недостатка в освещении внутри виллы нет, он легко проникает даже в самый отдаленный уголок дома благодаря крыше-террасе. Такой архитектурный ход решил проблему поглощенного внешнего пространства массой здания.

Французский архитектор совершил переворот в строительстве – он прогнозировал, что с введением промышленного производства, изменятся и материалы для возведения сооружений. Большинство зданий 19 века построены из камня, кирпича или древесины и внешне смотрелись грузно и тяжело. Так в строительство постепенно начало входить использование железобетона, стали и стекла. Ле Корбюзье напрочь отказался от привычных методов и строительных материалов, ускорив влияние эры машин. Вилла Савой смотрится не утяжелённой благодаря тому, что архитектор в ее строительстве использовал железобетон и каменные блоки. Уделялось особое внимание отделке: идеально отштукатуренное здание смотрится необычно, ведь дома во Франции 19-го века внешне были не такими аккуратными.
Благодаря новаторским идеям Корбюзье строить здания из стандартных элементов, эти технологии были в дальнейшем поставлены на поток и применяются в современной промышленности. Сейчас технологические достижения включают в себя обработку лазером, робототехнику и 3D-принтеры и все это благодаря разработкам знаменитого французского архитектора. Вклад Ле Корбюзье в прогресс строительства очевиден, ведь эти технологии послужили катализатором эволюционирования фабричных заготовок и применяется это сейчас и в производстве мебели и в крупном строительстве. Идеи архитектора из десятилетия в десятилетие применяются и модернизируются, позволяя осваивать все более эффективные инновации в разных сферах производства.

Вилла Савой – это значимый архитектурный проект и основы ее проектирования стали прототипом многих культовых строений мира.

archi-story.ru
Вилла Савой (Villa Savoye) + Пять отправных точек архитектуры Ле Корбюзье

Вилла Савой (Villa Savoye) во Франции от Ле Корбюзье (Le Corbusier).
Ле Корбюзье воплотил свои пять принципов современной архитектуры в вилле Савой (1928-1930). Вилла Савой была построена в Пуасене (Пуасси) среди сельского пейзажа на тонких бетонных сваях. Расположенные на разных уровнях террасы, переходные мостики, пандусы и лестницы, пронизывающие пространство, ракурсы, открывающиеся и меняющиеся при движении, неожиданные виды в просветах между частями здания – эти приемы основаны на принципе «пространство во времени».


Для определения размеров дома и его элементов архитектор применил изобретенную им модульную систему – модулор – систему дополнительных пропорций, основанных на принципе «золотого сечения». Здание оказало огромное влияние на развитие следующего поколения архитекторов.

В этом здании, как и в других постройках, Ле Корбюзье решал свои архитектурные идеи с помощью железобетона, развивая принципы О.Перре и Т. Гарнье. По мнению Зигфрида Гидиона Ле Корбюзье умел, как никто другой, превращать железобетонный каркас в средство архитектурной выразительности.
Название: Вилла Савой (Villa Savoye)
Расположение: Пуасси, Париж, Франция
Архитектура: Ле Корбюзье (Le Corbusier)
Проектирование и строительство: 1928-1930
Фото: monuments-nationaux.fr
Видеотур
«Пять отправных точек архитектуры» Ле Корбюзье были опубликованы в журнале «L’Esprit Nouveau» в двадцатые годы. В этих несложных на первый взгляд правилах Корбюзье пытался сформулировать свою концепцию архитектуры нового времени. Вот их свободный пересказ:
- Стойки. Разрешить научную проблему — значит прежде всего решить её элементы. В постройке можно отделить несущие элементы от ненесущих. Вместо прежних фундаментов, на которых постройка покоилась без контрольного расчета, появляются расчленённые фундаменты, а на месте прежних стен — отдельные стойки. Стойки и свайные фундаменты точно исчисляются в соответствии с приходящейся на них тяжестью. Сваи устанавливаются на определенных равных промежутках, не связанных с внутренней планировкой дома. Они поднимаются от земли на 3, 4, 6 и т. д. метров и несут на этой высоте первый этаж. Помещения, таким образом, избавлены от сырости, они имеют достаточно света и воздуха, строительный участок превращается в сад, который проходит под домом. Та же плоскость вторично выигрывается благодаря плоской крыше.
- Плоская крыша, сад на крыше. Плоская крыша позволяет использовать её для целей жилья: терраса, сад… Сточные трубы проходят внутри дома. На крышах могут быть разбиты сады с прекрасной растительностью, не только кустами, но и маленькими деревьями до 3-4 метров высоты.
- Свободное оформление плана. Свайная система несёт промежуточные перекрытия и доходит вплоть до крыши. Внутренние стены располагаются в любых местах, причем один этаж ни какой степени не зависит от другого. Нет больше капитальных стен, имеются только мембраны любой крепости. Следствием этого является абсолютная свобода в оформлении плана, то есть возможность свободно распоряжаться всеми имеющимися налицо средствами, что должно легко мирить с некоторой дороговизной бетонных конструкций.
- Удлиненное окно. Сваи с промежуточными перекрытиями образуют прямоугольные отверстия в фасаде, через которые свет и воздух входят внутрь в обильном количестве. Окно тянется от стойки к стойке, становясь таким образом удлинённым окном… Помещение одинаково освещено во всех своих местах — от стены до стены. Доказано, что такое помещение освещается в 8 раз интенсивнее, чем такое же помещение с вертикальными окнами. Вся история архитектуры вращается исключительно вокруг оконных отверстий. И вот железобетон открывает возможность максимального освещения при помощи удлиненных окон.
- Свободное оформление фасада. Благодаря тому, что основание дома поднято на несущих сваях и располагается балконообразно вокруг здания, весь фасад выдвигается вперёд от несущей конструкции. Таким образом, фасад теряет несущие свойства, и окна могут тянуться на любую длину без прямого отношения к внутреннему членению здания. Окно может иметь 10 метров длины, как и 200 метров (напр., наш проект здания Лиги Наций в Женеве). Таким образом, фасад получает свободное оформление.
www.magazindomov.ru
Вилла Савой (вилла в Пуасси) Ле Корбюзье
Образцовая вилла в Пуасси (Вилла Савой) (Villa Savoye) — загородный дом в парижском предместье Пуасси неподалеку от Парижа, принадлежавшая владельцам страховой компании Савуа (в нашей литературе из-за первоначальной ошибки переводчика она значится под «псевдонимом» «Савой», 1929-1931).
Частные виллы, созданные в мастерской в двадцатые годы, принесли новатору Ле Корбюзье славу, а воистину пуристские формы произведений зодчего сделались образцом для многих. В основе архитектурной идеи здесь обнаруживаются простота геометрии, белые фасады без признаков орнаментики, большие горизонтальные окна, плоские крыши, железобетонный каркас.

Вилла Савой (Вилла Савуа) – Архитектурные особенности:
- Здание покоится на пилоти. Так называют столбы, которые поддерживают основной объем здания, поднятого над уровнем земли;
- По первоначальному проекту вилла должна была быть трехэтажной. Но даже богатым владельцам страховой компании, чете Савуа, смета показалась завышенной. Убрав верхний этаж, Корбюзье устроил крышу-террасу;
- За полукруглой стеклянной стеной 60-метрового холла первого этажа виднеется винтовая лестница, но Корбюзье устроил еще и пандус;
- Единственная входная дверь в виллу;
- Первый этаж таких зданий на столбах использовался для хозяйственных нужд и коммуникаций;
- Ленточные окна делят все стены виллы. «Дом — это коробка, поднятая в воздух, прорезанная по четырем сторонам непрерывным окном. Посетители изумленно озираются, они не видят здесь ничего, что называют “домом”, они находятся в чем-то совершенно новом для них. И… они не скучают, я надеюсь», — писал Корбюзье;
В соответствии с «пятью отправными принципами современной архитектуры», выведенными Ле Корбюзье, и здесь мы видим плоскую крышу - Открытая крыша-терраса заняла и часть второго этажа;
- Вилла расположена посреди лужайки. По словам архитектора, «дом положен на траву, как предмет, чтобы ничего не повредить».
Таким образом, «5 отправных точек современной архитектуры» — знаменитый вывод и рецепт для зодчества будущего, который Корбюзье сформулировал на страницах своего журнала, оказывались воплощенными в реальных постройках. Они содержали следующие требования к новым зданиям: наличие опор-столбов, поднимающих сооружение над землей; крыша-терраса с садом, который, по мнению мастера, возвращал городу зелень, отнятую объемом дома; свободная планировка; ленточное . >кно, расположенное вдоль по фасаду; свободный фасад как следствие свободного плана (отныне фасады — это легкие пластины изолирующих стен и окон).
Исследование возможностей стандартной жилой застройки и массового типового строительства, начатые з проекте «Дом-Ино», Ле Корбюзье развил в доме «Ситроен» в городах-садах в Льеже и Пессаке. Промышленник Анри Фруже в 1924 году заказал архитектору для своих рабочих поселок в пригороде Бордо Пессаке, открытый для проживания в 1926 году. У местных жителей он получил наименование Современный квартал Фруже. В 50 двух- и трехэтажных домиках архитектор разнооб-ра П1Л планировку: были возведены так называемые ленточные дома, отдельно стоящие блоки. Простота процесса ст роительства обусловила его дешевизну при приемлемой комфортности, соответствующей тогдашним нормам.

С начала двадцатых годов можно проследить развитие градостроительной мысли Ле Корбюзье. В 1922 году братья представили на Осеннем салоне макет «Современного города на три миллиона жителей», административного центра, города-сада с рабочим населением и промышленными предприятиями, расположенными та зеленым поясом — «защитной зоной безопасности».
Ле Корбюзье построил несколько вилл. Но как он признавался для него самая значительная Вилла – Савой в Пуасси, близ Парижа. Это его раннее произведение (1929 – 1931 годы). Внешне – ничего особенного. Спичечный коробок на ножках. Всего 700 кв.м.
Но человека, попавшего в неё, ждет удивительный набор пластических ощущений. Если посмотреть на это сооружение сверху, мы увидим не здание, а удивительную корбюзьерианскую скульптуру.
Смотрите также:
delovoy-kvartal.ru
Вилла Савой архитектора Ле Корбюзье
Вилла Савой (фр. Villa Savoye) — загородный дом в парижском предместье Пуасси, спроектированный Ле Корбюзье для промышленника Пьера Савой в 1929-30 гг.
Этот новаторский проект часто приводится теоретиками архитектуры как пример, прекрасно иллюстрирующий «пять отправных точек архитектуры» Ле Корбюзье:
— Жилое помещение поднято над уровнем почвы на ряд бетонных опор. Благодаря этому нижний ярус здания кажется естественным продолжением сада.
— Абсолютно плоская крыша, которая может использоваться как солярий, спортплощадка, бассейн либо сад.
— «Свободный план» подразумевает открытое внутреннее пространство, не загромождённое перегородками и несущими конструкциями.
— Не вертикальные, а горизонтальные окна, которые способствуют лучшему освещению и вентиляции.
— В отличие от традиционных построек, у здания «свободный фасад», членение которого не предопределено задачей переноса веса здания на несущие конструкции.
В вилле Савой чётко воплотились такие приёмы модернистской архитектуры, как лишённые декора геометрические формы, белые гладкие фасады (с которыми контрастирует полихромный интерьер), использование внутреннего каркаса. Все эти причины способствовали тому, что это здание стало своеобразным манифестом архитектуры «интернационального стиля».
Между тем, наделавшая много шума в архитектурном сообществе плоская крыша — примененная едва ли не впервые, — оказалась недостаточно герметичной, в силу несовершенства строительных технологий того времени. Довольно скоро появились протечки, и владельцы здания подали на архитектора в суд. Вилла пришла в запустение и частично разрушена во время Второй мировой войны, а в 1958 г. городские власти приобрели её для размещения «дома детства». Позже здание было экспроприировано властями г. Пуасси с целью сноса, однако по счастливой случайности об этом узнал один архитектор, находящийся здесь проездом. Он направил письмо с протестом в СИАМ и благодаря поддержке архитекторов разных стран здание было спасено. Андре Мальро, бывший тогда министром культуры, принял решение внести виллу Савой в число «исторических памятников», что было беспрецедентным решением, поскольку по французским законам к историческим памятникам могут быть отнесены только произведения умерших. С 1962 г. владельцем виллы является государство, и теперь она открыта для посетителей как памятник архитектуры авангарда начала двадцатого века.
Последняя и наилучшая из всех вилл в пуристском стиле, Вилла Савой была создана для того, чтобы продемонстрировать те изобретения, которые Ле Корбюзье уже испытал и усовершенствовал в предшествующих проектах. То, что он называл «пятью отправными точками современной архитектуры» — столбы, на которые поднято здание, сад на крыше, свободный план, свободный фасад, удлинённые окна – всё это присутствует, плюс ещё кое-что: пандус для спуска и подъема. Всё это явно создано без особых усилий мастером, в полной мере владеющим своим ремеслом. После этого он мог бы приступить к выполнению других задач и воплощению новых замыслов.
В январе 2008 г. Вилла Савой, наряду с другими произведениями Ле Корбюзье, представлена Министерством культуры Франции и Фондом Ле Корбюзье кандидатурой в список Памятников мирового наследия ЮНЕСКО.
Источник:
#Франция@contemporary_architecture
sergeyurich.livejournal.com
Уникальная вилла Савой архитектора Ле Корбюзье: nemihail — LiveJournal
Уникально она тем, что именно с неё началась вся современная архитектура.
Точнее так, на её основе сформированы пять основных принципов или правильнее говорить, отправных точек современной архитектуры Ле Корбюзье.
Как вы уже знаете, я собрался строить дачу и перед тем как подготовить очередной проект, решил прокатиться по Европе и посмотреть на шедевры архитектуры, чтобы глаз успел привыкнуть к красивому и правильному.

Возвращаюсь к пяти основным принципам Ле Корбюзье:
Столбы-опоры
Дом парит над землей на железобетонных опорах, освобождая при этом место строение для продолжения сада. В Греции под такими столбами жильцы паркуют свои машины.

Плоская крыша-терраса
Вместо привычной двускатной кровли с чердаком, Корбюзье обустроил плоскую на которой разместил место для отдыха солярий и сад.
С тех пор на многих домах в Европе стали делать эксплуатируемые кровли с садами и даже бассейнами.

Свободная планировка
В связи с применением ж/б каркаса, стены больше не являются несущими. Теперь комнвты могут быть любых размеров, так как желает хозяин или дизайнер. Как итог, с тех пор внутреннюю планировку можно организовать с большей эффективностью.

Ленточные окна
Благодаря каркасной конструкции здания и отсутствию несущих стен, окна можно сделать практически любого размера и формы. Ле Корбюзье решил протянуть их лентой вдоль всего фасада, от угла до угла.

Свободный фасад
Опоры устанавливаются вне плоскости фасада, внутри дома. Видно, как тут Корбюзье свободно расположил их внутри помещения. При этом метериал стен может быть совершенно любым, пусть даже стекло, как на первом этаже дома.

Лестница на второй этаж


Основной зал с камином

Кухня

Одна из комнат. Сейчас почти всю мебель из дома убрали.

Ванная комната, в доме их несколько

Санузел

Террасса второго этажа

Кроме лестницы с первого этажа до самого последнего тянется пандус.

Вот он поднимается до солярия.

А это сам солярий

Только вдумайтесь, почти все современные строения основаны на принципах которые Ле Корбюзье заложил в этой вилле

Как вам дом?
ПыСы
Вилла Савой (Villa Savoye) — дом в парижском предместье Пуасси, спроектированный Ле Корбюзье для промышленника Пьера Савой в 1929-30 гг.
Теперь все инсайды на моем Телеграм-канале
Добавляйтесь…
Живой журнал / Фейсбук / Твиттер / ВК / ОК / Инстаграм / Ютюб /
[мелкий шрифт крупными буквами]
Данный журнал является личным дневником, содержащим частные мнения автора. В соответствии со статьёй 29 Конституции РФ, каждый человек может иметь собственную точку зрения относительно его текстового, графического, аудио и видео наполнения , равно как и высказывать её в любом формате. Журнал не имеет лицензии Министерства культуры и массовых коммуникаций РФ и не является СМИ, а, следовательно, автор не гарантирует предоставления достоверной, непредвзятой и осмысленной информации. Сведения, содержащиеся в этом дневнике, а так же комментарии автора этого дневника в других дневниках, не имеют никакого юридического смысла и не могут быть использованы в процессе судебного разбирательства. Автор журнала не несёт ответственности за содержание комментариев к его записям.
Рассказать друзьям или разместить в своём блоге:
nemihail.livejournal.com
проект виллы Savoy от Ле Корбюзье

Самые известные здания мира – в коллекции нашего сайта! Уважаемые посетители, посмотрите на этот парижский дом, включающий в себя все знаменитые Пять Пунктов Le Corbusier и созданный под влиянием опыта поколений архитекторов.
В 1920-х годах французский архитектор Le Corbusier (Charles-Édouard Jeanneret, 1887-1965) разработал свои главные Пять Пунктов Новой Архитектуры, публикуя статьи в журнале L’Esprit Nouveau и принимая участие в множестве жилищных комиссий. Кульминация наступила в 1931 году с окончанием строительства в пригороде Парижа Villa Savoye, которая и по сей день считается одним из самых важных зданий модернизма.
Дом включает в себя все Пять Пунктов – опоры, сад на крыше, свободное проектирование первого этажа, горизонтальные окна и свободная конструкция фасада. Манипуляции с абстрактными формами, ломающие традиционные исторические стандарты, повлияли на много поколений архитекторов.
Немного о Villa Savoye
- год постройки: 1931;
- архитекторы: Le Corbusier и Pierre Jeanneret;
- местоположение: Poissy, Франция;
- площадь: 125 м2 .
Эта загородная вилла, построенная для Pierre и Emilie Savoye, находится примерно в 32 километрах к западу от Парижа. В те времена здесь была живописная сельская местность. Le Corbusier, который работал в течение двух десятилетий со своим двоюродным братом Pierre над этим и другими проектами, превратил здание в конкретную реализацию Пяти Пунктов. На примере этого особняка он доказал, какие огромные возможности для декорирования открываются, если воспользоваться его теорией.
Его конструкцию можно также рассматривать как подчёркнутую демонстрацию трёх основных архитектурных элементов: горизонтальных плит (этажей), вертикальных опор (колонн) и стен (особенно фасадов). Lance Lavine в своей книге «Механика и смысл в архитектуре» (Mechanics and Meaning in Architecture) проводит параллели между исследованиями Le Corbusier и открытиями в физике на рубеже веков, а именно – составляющими атомов: электронов, протонов и нейтронов.
Достижения науки и техники оказали большое влияние на Le Corbusier, и Villa Savoye он представил как «машину для жизни» – именно так говорил архитектор, чтобы выразить суть его творения.

В последующие десятилетия территория вокруг Villa Savoye изменялась и развивалась, но присвоение зданию статуса французского национального памятника в 1960 году позволило сохранить его в практически первозданном виде (не говоря уже о том, что этот статус спас особняк от разрушения – ведь после того, как владельцы покинули дом во время Второй мировой войны, он пришёл в запустение, а одно время там был даже сарай для сена).
Деревья возле южной стороны квадратного дома так же хороши, как и во времена его строительства, а вот вид с северной и западной стороны был иным – тогда эти фасады были скрыты деревьями от школы и других зданий.
Аллея с южной стороны была призвана создать у гостей (несомненно, прибывающих на автомобиле) первое приятное впечатление о вилле. Как мы увидим далее, у этой дизайнерской идеи есть своеобразное продолжение. Le Corbusier она напоминала о подходе к Парфенону в Афинах. Здесь она представляет собой своего рода современную интерпретацию античности.

Le Corbusier писал, что у здания не должно быть фасада в классическом понимании, дом должен быть открытым со всех четырёх сторон. Тем не менее, южная сторона дома выглядит как тыльный фасад. Этот вход – главный, и он лишь намекает на то, какова вилла на самом деле.

Одна из самых ярких архитектурных деталей первого этажа – широкий навес, который окружает здание с трёх сторон. Пространство между опорными колоннами и наружной стеной здесь достаточно широко для того, чтобы мог проехать автомобиль.

Стены первого этажа с северной стороны дома выстроены полукругом на основе радиуса поворота автомобиля. Машины семьи Savoye – у каждого из троих домочадцев был свой автомобиль – останавливались здесь перед тем, как шофёр отводил их в трёхместный гараж, расположенный в западной части дома.
Эта сторона архитектурно более интересна, чем южная. Здесь ясно выражены все Пять Пунктов архитектора. Главный – второй – этаж поднят над землёй с помощью колонн. Стены первого этажа освобождены от этих опор. Вдоль всего второго этажа протянулись ленточные окна. Окно перед колоннами демонстрирует открытый фасад. Изогнутое ограждение крыши очерчивает границы сада на верхней террасе.

Вот ещё одна из интересных тонкостей дизайна, подробно описанная в книге LaVine: стандартная конструкция может выглядеть весьма необычно благодаря новаторскому архитектурному подходу. Посмотрите, как это выглядит: колонна, которая при стандартном расположении находилась бы внутри, сразу за входной дверью, и мешала бы войти в дом, вынесена далеко под навес. Это позволило и сохранить гармонию элементов конструкции, и обеспечить надёжность.
Corbusier удвоил количество колонн в одном направлении (слева направо на фото) и сдвинул их в другом; парные колонны и несущие балки видны сквозь стекло по бокам от входной двери. Такая структурная гибкость становится возможна благодаря использованию бетона, из которого сделаны элементы конструкции здания.

Кроме того, эти опоры (то, что LaVine называет условной структурой – в отличие от рациональной структуры интерьера) не просто «обслуживают» входную дверь, но и поддерживают пандус, ведущий от крыльца до крыши.
Давайте посмотрим на дом с того же ракурса, который открывается перед гостями Villa Savoye: с одной стороны мы увидим пандус, с другой – винтовую лестницу в доме, а между ними – умывальную раковину, встроенную в колонну. За ней расположены комнаты горничных и прачечная.

Поднимаясь по винтовой лестнице или спиралевидному пандусу, можно постепенно увидеть дом и окрестности со всех сторон. Оба пути ведут на второй этаж – к большой гостиной и террасе с южной стороны дома. Пандус поднимается выше, к обустроенному на крыше саду, а от террасы его отделяет прозрачная стеклянная стена.

Прежде чем отправиться в гостиную, давайте взглянем на спальню. Она находится в юго-восточном углу дома. Сплошная лента окон позволяет хорошо разглядеть окружающий пейзаж.
Этот вид интересен ещё и потому, что показывает, какие цвета Corbusier выбрал для интерьера (и экстерьера, учитывая, что на первом этаже стены окрашены зелёным; известная выставка «Международный Стиль» и книга 1932 года описывают крышу, как «синюю и розовую», хотя после восстановления дома все стены стали белыми). Изящная перегородка с закруглённым углом отделяет спальню от прилегающей ванной комнаты.
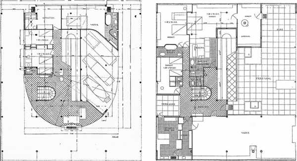
В конце статьи приведены поэтажные планы, на которых можно в деталях рассмотреть все особенности планировки дома.

Пройти к спальне владельцев дома можно через коридор рядом с ванной. Вид, открывающийся из спальни, показывает, как объединяет эти две комнаты волнообразная «банная» скамья, напоминающая знаменитые шезлонги Corbusier (если присмотреться к снимкам, то можно увидеть такие шезлонги в гостиной и холле).
Ванная комната на Villa Savoye отлично иллюстрирует интерьер открытого типа – один из Пяти Пунктов Corbusier, – однако делает это весьма тонко. Как и повсюду в этом доме, колонны не являются несущими конструкциями. Здесь они стоят на небольшом расстоянии от стен.

Гостиная очень просторна даже по сегодняшним меркам. Она действительно может рассматриваться как прародитель современных открытых планировок. Так она выглядит, если смотреть из кухни. На переднем плане – столовая, а условная «линия разграничения» между ней и гостиной проходит от камина до стула напротив него.
Продление горизонтального окна гостиной на террасу не только обеспечивает единство интерьера и экстерьера, но и позволяет беспрепятственно любоваться пейзажем как из комнаты, так и с террасы.

Огромные раздвижные стеклянные стены, которые обращены на юг, объединяют гостиную и террасу, даря комнате обилие солнечного света, а встроенный стол даёт возможность пообедать на свежем воздухе.

Философский подход позволяет рассматривать этот дом как трёхуровневое иерархическое представление опыта и значения. Небольшой первый этаж оснащён навесом, который увеличивает жилое пространство этажом выше. Второй этаж – это защищённое, приватное пространство, которое в то же время достаточно открыто благодаря ленточным окнам по всем периметру дома. А с крыши взгляду открываются просторы, скрытые за деревьями.

Именно ради великолепного вида, который открывается за деревьями, и были спроектированы окна с северной стороны. Этот проём (в 1931 году не было здания на заднем плане) позволяет взглянуть очень далеко. Это кульминация архитектурной идеи, которая продумана до мелочей и включает в себя и навес первого этажа, и изящную лестницу, и все детали интерьера. Несомненно, этот дом обязательно следует посетить! И статус национального памятника позволяет это сделать любому гостю.

designerdreamhomes.ru