Трехкомнатная хрущевка планировка 57 кв: перепланировка трехкомнатной квартиры, варианты дизайна комнат
варианты перепланировки трехкомнатной квартиры, примеры интересного дизайна комнат в «трешке»
Каждая квартира индивидуальна, как квадратными метрами, так и планировкой. Иногда хозяева недовольны расположением той или иной комнаты. Довольно часто, для визуального расширения, приходиться ставить предметы интерьера так, чтобы комната казалось шире. Иногда не обходится и без основательного ремонта. Жильцы решаются на капитальные строительные работы, например, такие как снос стен.
Планировка «хрущевки» может стать не только утомительным, но и интересным занятием. Вы сможете сполна проявить свои дизайнерские способности. «Трешка» в кирпичном доме может стать вашим уникальным творением.
Особенности
В 1950 году появились первые дома, которые вскоре станут называть «хрущевки». Здания строили прочно и поэтому такие дома наверняка простоят еще долгое время.
Известно, что дома такого типа планировали и строились как временное сооружение, но по стечению обстоятельств, здания стали постоянным местом жительства для многих семей.
«Хрущевки» можно определить по следующим критериям:
- очень низкое расположение потолков;
- квартира с небольшими квадратными метрами;
- ванная комната и туалет без перегородок, то есть совмещенные;
- из одной комнаты можно пройти в другую, иногда комнаты проходные;
- вы можете услышать, что твориться у соседей за стеной, шумоизоляция просто ужасная;
- холодные помещения, которые приходиться дополнительно отапливать.
Большим плюсом квартир является то, что ни одна стена не зависит от другой. Если вы затеяли ремонт, который включает в себя снос стены, то можете смело воплощать свои планы.
Нет опасений, что в любой момент из-за строительной ошибки рухнет целый дом, чего не скажешь про другие сооружения.
Планировка
Рассмотрим типичные виды 3-комнатной квартиры в стиле «хрущевка»:
- ярко выражена одна большая комната, остальные две всегда намного меньше;
- две комнаты расположены вместе и одна маленькая отдельно от них;
- комнаты, пригодные для проживания, находятся по разные стороны дома;
- комнаты изолированы друг от друга.
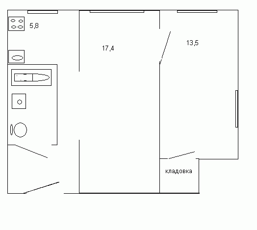
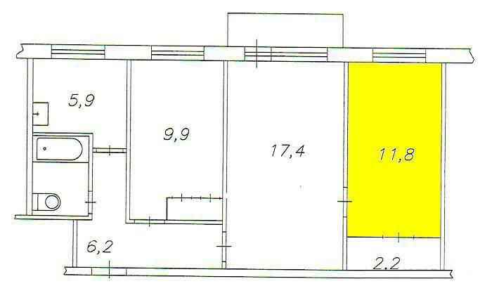
Преимущество таких квартир в том, что в одной из жилых комнат имеется так называемая кладовка.
Это хорошо тем, что здесь обычно отводят место под верхнюю одежду. Довольно неплохой вариант сэкономить деньги и отказаться от покупки габаритных шкафов, которые значительно сокращают квадратные метры и делают комнату меньше.
Самая большая комната, в основном, становится залом для гостей. Здесь можно собираться всей семьей или компанией. Места для всех будет достаточно. Другую комнату выбирают в качестве спальни.
Последнему помещению отдают предпочтение как спальне для детей.
Необходимые документы
Ремонт и изменения в перепланировке проходят в следующем порядке.
Сначала необходимо проконсультироваться со специалистами, которые одобрят ваш эскиз новой планировки квартиры. Положительные результаты этого этапа необходимы для следующего шага – подписи и разрешения в администрации на ремонт в вашей квартире.Необходимо предоставить документы:
- эскиз;
- рисунок квартиры с ярко выраженными изменениями;
- проект.
Если в ваших планах предоставить эскиз квартиры на бумаге, то придется собирать ряд необходимых документов. Преимуществом трехкомнатных квартир, как говорилось ранее, является встроенная кладовая или некий шкаф, который входит в планировку самой квартиры.
Поэтому, чтобы после ремонта квартира превратилась в уютное и просторное помещение, пригодное для комфортной жизни, желательно получить лицензию от организации по проектам планировки жилища.
Возможные варианты для перепланировки
Квадратные метры увеличить, к сожалению, не удастся, но перестроить и изменить помещение можно следующими способами:
- квартира-студия, полный снос всех стен;
- совмещение некоторых комнат друг с другом.
Самым «больным» местом «хрущевки» является кухня. Обычно размеры ее не превышают и 6 квадратных метров, что чаще всего не нравится хозяйкам дома. Для того, чтобы семья не теснилась в столь маленьком пространстве, кухня чаще всего подвергается перепланировке.
Бесспорное решение увеличения кухонной зоны – это соединение ее с залом. Огромным преимуществом является не только большое пространство, которое вы получите, но и дополнительное расширение ванны с туалетом. Большой семье такую комнату можно оборудовать столом для обеда и тесниться за обедом больше не придется.
Вместо стен и дверей можно использовать раздвижные перегородки. Квартира, которая находится на углу, хороша тем, что имеет на одно окно больше, чем квартиры, расположенные в середине здания.
Благодаря этому плюсу при планировке проектируется дополнительная спальная жилая комната.
Туалет и соединенные комнаты
Для увеличения пространства санитарных узлов вместо ванны устанавливают душевую кабину.
На освободившемся месте в ванной или на кухне ставят автоматическую стиральную машинку. Нередко в перепланировку включают и балкон, потихоньку соединяя его с какой-нибудь из комнат. Проблем с эксплуатацией здания и правовых нарушений не будет. Прежде чем оформлять балкон под жилое пространство, его в первую очередь утепляют, а затем оформляют под свой вкус.
Не стоит забывать важную рекомендацию, что увеличивать туалет за счет других комнат не желательно.
Стены
Самым важным в ремонте является снос или перемещение стены.
Одна малейшая ошибка, и может рухнуть целое здание. Все смещения должны быть строго согласованы с вышестоящими инстанциями. За помощью необходимо обратиться к инженерам, которые посоветуют и нарисуют правильный эскиз квартиры с новой планировкой.
Иногда достаточно пробить небольшое отверстие в стене, применить немного фантазии и в конечном итоге вы получите потрясающую комнату. Это касается стены между гостиной и кухней. Однако не стоит забывать, что в разный период времени ее применяли, как несущую стену. Это необходимо уточнить у специалиста, чтобы не было неприятных последствий.
А теперь – несколько советов, чтобы увеличить пространство: для визуального расширения комнаты купите светлые обои с маленькими узорами, рисунком или горизонтальной полоской.
Чем застелить пол?
В отличии от современных квартир в 3-х квартирной «хрущевке» пол покрывали деревянными досками.
Не стоит забывать, что при капитальном ремонте меняется не только расположение стен, но и напольное покрытие.
Если жильцы решают покрыть пол линолеумом или ламинатом, тогда следует в первую очередь провести смену старого пола и выровнять все его недочеты. Исключением является плитка, при укладке которой выравнивание пола не требуется. Последняя идеально подходит для напольного покрытия для квартиры-студии, в которую, нередко, переделывают трехкомнатную квартиру в «хрущевке».
Если каждую стену квартиры покрыть шпаклевкой, и поклеить обои с разным орнаментом, получиться очень уютная и милая квартира.
За счет разного рисунка, стены приобретают иллюзию отдаленности друг от друга.
Потолок
Стоит взять во внимание, что не нужно приобретать для освещения огромные массивные люстры. Самым оптимальным вариантом являются точечные светильники. Низкий потолок оформляют, как и стены, в светлые цвета. В отличии от темных оттенков, светлые не «давят» на жителей квартиры. Иногда используют зеркала. Также неплохим вариантом будет использование на потолке многоуровневых ступеней, которые тоже неплохо могут зрительно увеличить квартиру.
Будьте внимательны, что при натяжном потолке или гипсокартонном покрытии от потолка часто вычитаются сантиметров, которые незаметны, но все же снижают потолок.
Иногда такие варианты для ремонта неприемлемы.
Остановите свой выбор на простой покраске, а правильно подобранные оттеночные цвета не уступят ни натяжному потолку, ни гипсокартонному.
Немного об интерьере
При выборе стиля интерьера будьте внимательны: не покупайте для маленькой квартиры с небольшим жилым пространством огромные статуи или громоздкие шкафы. Рассмотрим вариант минимализма в интерьере:
- Использование только светлых тонов, начиная от белого и, заканчивая бежевыми или бирюзовыми.
- Не стоит использовать в декорациях сложные элементы. Больше простоты, и результат не заставит себя долго ждать.
- Используйте в одной сплошной комнате цветовые зоны.
- Вместо люстры купите точечные светильники или бра.
- Ничто не заменит естественное освещение, больше окон – больше света.

Минимализм в дизайне хорош тем, что в его оформлении используются вещи-трансформеры, такие как кровать, диван или стол. Для кухни оптимальным вариантом будет гарнитур со шкафами полностью, на всю длину стены: от пола до потолка.
Не бойтесь использовать зеркало, а мебель ставить четко в угол, а не на середину комнаты.
Еще раз про свет и цвета
Трехкомнатная квартира станет в разы привлекательнее, если в дизайне использовать вазы, картины и фото в рамках. Желательно, чтобы квартира имела много окон.
Маскируйте по возможности приборы освещения, проявите фантазию, например, со светильником.
При светлых потолках и стенах акцентируют внимание с помощью «ярких пятен» в дизайне, например, красной вазы или картины с пейзажем. Не бойтесь играть с цветами и сочетать их между собой. Во многих случаях после качественного ремонта старой квартиры вы не увидите больше ту самую «хрущевку», а результат порадует вас и ваших близких.
Подробнее о том, как сделать перепланировку 3-х комнатной квартиры в «хрущевке», вы узнаете из следующего видео.
варианты перепланировки трехкомнатной квартиры, примеры интересного дизайна комнат в «трешке»
Каждая квартира индивидуальна, как квадратными метрами, так и планировкой.
Иногда хозяева недовольны расположением той или иной комнаты. Довольно часто, для визуального расширения, приходиться ставить предметы интерьера так, чтобы комната казалось шире. Иногда не обходится и без основательного ремонта. Жильцы решаются на капитальные строительные работы, например, такие как снос стен.
Планировка «хрущевки» может стать не только утомительным, но и интересным занятием. Вы сможете сполна проявить свои дизайнерские способности. «Трешка» в кирпичном доме может стать вашим уникальным творением.
Особенности
В 1950 году появились первые дома, которые вскоре станут называть «хрущевки». Здания строили прочно и поэтому такие дома наверняка простоят еще долгое время. Конечно, из года в год проводятся ремонтные работы, которые увеличивают долговечность такого дома.
Известно, что дома такого типа планировали и строились как временное сооружение, но по стечению обстоятельств, здания стали постоянным местом жительства для многих семей.
«Хрущевки» можно определить по следующим критериям:
- очень низкое расположение потолков;
- квартира с небольшими квадратными метрами;
- ванная комната и туалет без перегородок, то есть совмещенные;
- из одной комнаты можно пройти в другую, иногда комнаты проходные;
- вы можете услышать, что твориться у соседей за стеной, шумоизоляция просто ужасная;
- холодные помещения, которые приходиться дополнительно отапливать.
Большим плюсом квартир является то, что ни одна стена не зависит от другой. Если вы затеяли ремонт, который включает в себя снос стены, то можете смело воплощать свои планы.
Нет опасений, что в любой момент из-за строительной ошибки рухнет целый дом, чего не скажешь про другие сооружения.
Планировка
Рассмотрим типичные виды 3-комнатной квартиры в стиле «хрущевка»:
- ярко выражена одна большая комната, остальные две всегда намного меньше;
- две комнаты расположены вместе и одна маленькая отдельно от них;
- комнаты, пригодные для проживания, находятся по разные стороны дома;
- комнаты изолированы друг от друга.

Преимущество таких квартир в том, что в одной из жилых комнат имеется так называемая кладовка. Это хорошо тем, что здесь обычно отводят место под верхнюю одежду. Довольно неплохой вариант сэкономить деньги и отказаться от покупки габаритных шкафов, которые значительно сокращают квадратные метры и делают комнату меньше.
Самая большая комната, в основном, становится залом для гостей. Здесь можно собираться всей семьей или компанией. Места для всех будет достаточно. Другую комнату выбирают в качестве спальни.
Последнему помещению отдают предпочтение как спальне для детей.
Необходимые документы
Ремонт и изменения в перепланировке проходят в следующем порядке.
Сначала необходимо проконсультироваться со специалистами, которые одобрят ваш эскиз новой планировки квартиры. Положительные результаты этого этапа необходимы для следующего шага – подписи и разрешения в администрации на ремонт в вашей квартире.
Необходимо предоставить документы:
- эскиз;
- рисунок квартиры с ярко выраженными изменениями;
- проект.
Если в ваших планах предоставить эскиз квартиры на бумаге, то придется собирать ряд необходимых документов. Преимуществом трехкомнатных квартир, как говорилось ранее, является встроенная кладовая или некий шкаф, который входит в планировку самой квартиры.
Поэтому, чтобы после ремонта квартира превратилась в уютное и просторное помещение, пригодное для комфортной жизни, желательно получить лицензию от организации по проектам планировки жилища.
Возможные варианты для перепланировки
Квадратные метры увеличить, к сожалению, не удастся, но перестроить и изменить помещение можно следующими способами:
- квартира-студия, полный снос всех стен;
- совмещение некоторых комнат друг с другом.

Самым «больным» местом «хрущевки» является кухня. Обычно размеры ее не превышают и 6 квадратных метров, что чаще всего не нравится хозяйкам дома. Для того, чтобы семья не теснилась в столь маленьком пространстве, кухня чаще всего подвергается перепланировке.
Бесспорное решение увеличения кухонной зоны – это соединение ее с залом. Огромным преимуществом является не только большое пространство, которое вы получите, но и дополнительное расширение ванны с туалетом. Большой семье такую комнату можно оборудовать столом для обеда и тесниться за обедом больше не придется.
Вместо стен и дверей можно использовать раздвижные перегородки. Квартира, которая находится на углу, хороша тем, что имеет на одно окно больше, чем квартиры, расположенные в середине здания.
Благодаря этому плюсу при планировке проектируется дополнительная спальная жилая комната.
Туалет и соединенные комнаты
Для увеличения пространства санитарных узлов вместо ванны устанавливают душевую кабину.
На освободившемся месте в ванной или на кухне ставят автоматическую стиральную машинку. Нередко в перепланировку включают и балкон, потихоньку соединяя его с какой-нибудь из комнат. Проблем с эксплуатацией здания и правовых нарушений не будет. Прежде чем оформлять балкон под жилое пространство, его в первую очередь утепляют, а затем оформляют под свой вкус.
Смежные комнаты – огромная проблема для семьи из трех человек и больше. Для увеличения длины коридора приходится уменьшать квадратные метры в комнатах. В конечном результате жильцы могут порадоваться тому, что не нужно больше ходить из комнаты в комнату, теперь есть коридор.
Не стоит забывать важную рекомендацию, что увеличивать туалет за счет других комнат не желательно.
Стены
Самым важным в ремонте является снос или перемещение стены.
Одна малейшая ошибка, и может рухнуть целое здание. Все смещения должны быть строго согласованы с вышестоящими инстанциями. За помощью необходимо обратиться к инженерам, которые посоветуют и нарисуют правильный эскиз квартиры с новой планировкой.
Иногда достаточно пробить небольшое отверстие в стене, применить немного фантазии и в конечном итоге вы получите потрясающую комнату. Это касается стены между гостиной и кухней. Однако не стоит забывать, что в разный период времени ее применяли, как несущую стену. Это необходимо уточнить у специалиста, чтобы не было неприятных последствий.
А теперь – несколько советов, чтобы увеличить пространство: для визуального расширения комнаты купите светлые обои с маленькими узорами, рисунком или горизонтальной полоской.
Чем застелить пол?
В отличии от современных квартир в 3-х квартирной «хрущевке» пол покрывали деревянными досками.
Срок службы такого пола не более 30 лет. Все зависит от влажности в квартире и условий эксплуатации напольного покрытия.
Не стоит забывать, что при капитальном ремонте меняется не только расположение стен, но и напольное покрытие.
Если жильцы решают покрыть пол линолеумом или ламинатом, тогда следует в первую очередь провести смену старого пола и выровнять все его недочеты. Исключением является плитка, при укладке которой выравнивание пола не требуется. Последняя идеально подходит для напольного покрытия для квартиры-студии, в которую, нередко, переделывают трехкомнатную квартиру в «хрущевке».
Если каждую стену квартиры покрыть шпаклевкой, и поклеить обои с разным орнаментом, получиться очень уютная и милая квартира.
За счет разного рисунка, стены приобретают иллюзию отдаленности друг от друга.
Потолок
Стоит взять во внимание, что не нужно приобретать для освещения огромные массивные люстры. Самым оптимальным вариантом являются точечные светильники. Низкий потолок оформляют, как и стены, в светлые цвета. В отличии от темных оттенков, светлые не «давят» на жителей квартиры. Иногда используют зеркала. Также неплохим вариантом будет использование на потолке многоуровневых ступеней, которые тоже неплохо могут зрительно увеличить квартиру.
Будьте внимательны, что при натяжном потолке или гипсокартонном покрытии от потолка часто вычитаются сантиметров, которые незаметны, но все же снижают потолок.
Иногда такие варианты для ремонта неприемлемы.
Остановите свой выбор на простой покраске, а правильно подобранные оттеночные цвета не уступят ни натяжному потолку, ни гипсокартонному.
Немного об интерьере
При выборе стиля интерьера будьте внимательны: не покупайте для маленькой квартиры с небольшим жилым пространством огромные статуи или громоздкие шкафы. Рассмотрим вариант минимализма в интерьере:
- Использование только светлых тонов, начиная от белого и, заканчивая бежевыми или бирюзовыми.
- Не стоит использовать в декорациях сложные элементы. Больше простоты, и результат не заставит себя долго ждать.
- Используйте в одной сплошной комнате цветовые зоны.
- Вместо люстры купите точечные светильники или бра.
- Ничто не заменит естественное освещение, больше окон – больше света.

Минимализм в дизайне хорош тем, что в его оформлении используются вещи-трансформеры, такие как кровать, диван или стол. Для кухни оптимальным вариантом будет гарнитур со шкафами полностью, на всю длину стены: от пола до потолка.
Не бойтесь использовать зеркало, а мебель ставить четко в угол, а не на середину комнаты.
Еще раз про свет и цвета
Трехкомнатная квартира станет в разы привлекательнее, если в дизайне использовать вазы, картины и фото в рамках. Желательно, чтобы квартира имела много окон.
Маскируйте по возможности приборы освещения, проявите фантазию, например, со светильником.
При светлых потолках и стенах акцентируют внимание с помощью «ярких пятен» в дизайне, например, красной вазы или картины с пейзажем. Не бойтесь играть с цветами и сочетать их между собой. Во многих случаях после качественного ремонта старой квартиры вы не увидите больше ту самую «хрущевку», а результат порадует вас и ваших близких.
Подробнее о том, как сделать перепланировку 3-х комнатной квартиры в «хрущевке», вы узнаете из следующего видео.
варианты перепланировки трехкомнатной квартиры, примеры интересного дизайна комнат в «трешке»
Каждая квартира индивидуальна, как квадратными метрами, так и планировкой.
Иногда хозяева недовольны расположением той или иной комнаты. Довольно часто, для визуального расширения, приходиться ставить предметы интерьера так, чтобы комната казалось шире. Иногда не обходится и без основательного ремонта. Жильцы решаются на капитальные строительные работы, например, такие как снос стен.
Планировка «хрущевки» может стать не только утомительным, но и интересным занятием. Вы сможете сполна проявить свои дизайнерские способности. «Трешка» в кирпичном доме может стать вашим уникальным творением.
Особенности
В 1950 году появились первые дома, которые вскоре станут называть «хрущевки». Здания строили прочно и поэтому такие дома наверняка простоят еще долгое время. Конечно, из года в год проводятся ремонтные работы, которые увеличивают долговечность такого дома.
Известно, что дома такого типа планировали и строились как временное сооружение, но по стечению обстоятельств, здания стали постоянным местом жительства для многих семей.
«Хрущевки» можно определить по следующим критериям:
- очень низкое расположение потолков;
- квартира с небольшими квадратными метрами;
- ванная комната и туалет без перегородок, то есть совмещенные;
- из одной комнаты можно пройти в другую, иногда комнаты проходные;
- вы можете услышать, что твориться у соседей за стеной, шумоизоляция просто ужасная;
- холодные помещения, которые приходиться дополнительно отапливать.
Большим плюсом квартир является то, что ни одна стена не зависит от другой. Если вы затеяли ремонт, который включает в себя снос стены, то можете смело воплощать свои планы.
Нет опасений, что в любой момент из-за строительной ошибки рухнет целый дом, чего не скажешь про другие сооружения.
Планировка
Рассмотрим типичные виды 3-комнатной квартиры в стиле «хрущевка»:
- ярко выражена одна большая комната, остальные две всегда намного меньше;
- две комнаты расположены вместе и одна маленькая отдельно от них;
- комнаты, пригодные для проживания, находятся по разные стороны дома;
- комнаты изолированы друг от друга.

Преимущество таких квартир в том, что в одной из жилых комнат имеется так называемая кладовка. Это хорошо тем, что здесь обычно отводят место под верхнюю одежду. Довольно неплохой вариант сэкономить деньги и отказаться от покупки габаритных шкафов, которые значительно сокращают квадратные метры и делают комнату меньше.
Самая большая комната, в основном, становится залом для гостей. Здесь можно собираться всей семьей или компанией. Места для всех будет достаточно. Другую комнату выбирают в качестве спальни.
Последнему помещению отдают предпочтение как спальне для детей.
Необходимые документы
Ремонт и изменения в перепланировке проходят в следующем порядке.
Сначала необходимо проконсультироваться со специалистами, которые одобрят ваш эскиз новой планировки квартиры. Положительные результаты этого этапа необходимы для следующего шага – подписи и разрешения в администрации на ремонт в вашей квартире.
Необходимо предоставить документы:
- эскиз;
- рисунок квартиры с ярко выраженными изменениями;
- проект.
Если в ваших планах предоставить эскиз квартиры на бумаге, то придется собирать ряд необходимых документов. Преимуществом трехкомнатных квартир, как говорилось ранее, является встроенная кладовая или некий шкаф, который входит в планировку самой квартиры.
Поэтому, чтобы после ремонта квартира превратилась в уютное и просторное помещение, пригодное для комфортной жизни, желательно получить лицензию от организации по проектам планировки жилища.
Возможные варианты для перепланировки
Квадратные метры увеличить, к сожалению, не удастся, но перестроить и изменить помещение можно следующими способами:
- квартира-студия, полный снос всех стен;
- совмещение некоторых комнат друг с другом.

Самым «больным» местом «хрущевки» является кухня. Обычно размеры ее не превышают и 6 квадратных метров, что чаще всего не нравится хозяйкам дома. Для того, чтобы семья не теснилась в столь маленьком пространстве, кухня чаще всего подвергается перепланировке.
Бесспорное решение увеличения кухонной зоны – это соединение ее с залом. Огромным преимуществом является не только большое пространство, которое вы получите, но и дополнительное расширение ванны с туалетом. Большой семье такую комнату можно оборудовать столом для обеда и тесниться за обедом больше не придется.
Вместо стен и дверей можно использовать раздвижные перегородки. Квартира, которая находится на углу, хороша тем, что имеет на одно окно больше, чем квартиры, расположенные в середине здания.
Благодаря этому плюсу при планировке проектируется дополнительная спальная жилая комната.
Туалет и соединенные комнаты
Для увеличения пространства санитарных узлов вместо ванны устанавливают душевую кабину.
На освободившемся месте в ванной или на кухне ставят автоматическую стиральную машинку. Нередко в перепланировку включают и балкон, потихоньку соединяя его с какой-нибудь из комнат. Проблем с эксплуатацией здания и правовых нарушений не будет. Прежде чем оформлять балкон под жилое пространство, его в первую очередь утепляют, а затем оформляют под свой вкус.
Смежные комнаты – огромная проблема для семьи из трех человек и больше. Для увеличения длины коридора приходится уменьшать квадратные метры в комнатах. В конечном результате жильцы могут порадоваться тому, что не нужно больше ходить из комнаты в комнату, теперь есть коридор.
Не стоит забывать важную рекомендацию, что увеличивать туалет за счет других комнат не желательно.
Стены
Самым важным в ремонте является снос или перемещение стены.
Одна малейшая ошибка, и может рухнуть целое здание. Все смещения должны быть строго согласованы с вышестоящими инстанциями. За помощью необходимо обратиться к инженерам, которые посоветуют и нарисуют правильный эскиз квартиры с новой планировкой.
Иногда достаточно пробить небольшое отверстие в стене, применить немного фантазии и в конечном итоге вы получите потрясающую комнату. Это касается стены между гостиной и кухней. Однако не стоит забывать, что в разный период времени ее применяли, как несущую стену. Это необходимо уточнить у специалиста, чтобы не было неприятных последствий.
А теперь – несколько советов, чтобы увеличить пространство: для визуального расширения комнаты купите светлые обои с маленькими узорами, рисунком или горизонтальной полоской.
Чем застелить пол?
В отличии от современных квартир в 3-х квартирной «хрущевке» пол покрывали деревянными досками.
Срок службы такого пола не более 30 лет. Все зависит от влажности в квартире и условий эксплуатации напольного покрытия.
Не стоит забывать, что при капитальном ремонте меняется не только расположение стен, но и напольное покрытие.
Если жильцы решают покрыть пол линолеумом или ламинатом, тогда следует в первую очередь провести смену старого пола и выровнять все его недочеты. Исключением является плитка, при укладке которой выравнивание пола не требуется. Последняя идеально подходит для напольного покрытия для квартиры-студии, в которую, нередко, переделывают трехкомнатную квартиру в «хрущевке».
Если каждую стену квартиры покрыть шпаклевкой, и поклеить обои с разным орнаментом, получиться очень уютная и милая квартира.
За счет разного рисунка, стены приобретают иллюзию отдаленности друг от друга.
Потолок
Стоит взять во внимание, что не нужно приобретать для освещения огромные массивные люстры. Самым оптимальным вариантом являются точечные светильники. Низкий потолок оформляют, как и стены, в светлые цвета. В отличии от темных оттенков, светлые не «давят» на жителей квартиры. Иногда используют зеркала. Также неплохим вариантом будет использование на потолке многоуровневых ступеней, которые тоже неплохо могут зрительно увеличить квартиру.
Будьте внимательны, что при натяжном потолке или гипсокартонном покрытии от потолка часто вычитаются сантиметров, которые незаметны, но все же снижают потолок.
Иногда такие варианты для ремонта неприемлемы.
Остановите свой выбор на простой покраске, а правильно подобранные оттеночные цвета не уступят ни натяжному потолку, ни гипсокартонному.
Немного об интерьере
При выборе стиля интерьера будьте внимательны: не покупайте для маленькой квартиры с небольшим жилым пространством огромные статуи или громоздкие шкафы. Рассмотрим вариант минимализма в интерьере:
- Использование только светлых тонов, начиная от белого и, заканчивая бежевыми или бирюзовыми.
- Не стоит использовать в декорациях сложные элементы. Больше простоты, и результат не заставит себя долго ждать.
- Используйте в одной сплошной комнате цветовые зоны.
- Вместо люстры купите точечные светильники или бра.
- Ничто не заменит естественное освещение, больше окон – больше света.

Минимализм в дизайне хорош тем, что в его оформлении используются вещи-трансформеры, такие как кровать, диван или стол. Для кухни оптимальным вариантом будет гарнитур со шкафами полностью, на всю длину стены: от пола до потолка.
Не бойтесь использовать зеркало, а мебель ставить четко в угол, а не на середину комнаты.
Еще раз про свет и цвета
Трехкомнатная квартира станет в разы привлекательнее, если в дизайне использовать вазы, картины и фото в рамках. Желательно, чтобы квартира имела много окон.
Маскируйте по возможности приборы освещения, проявите фантазию, например, со светильником.
При светлых потолках и стенах акцентируют внимание с помощью «ярких пятен» в дизайне, например, красной вазы или картины с пейзажем. Не бойтесь играть с цветами и сочетать их между собой. Во многих случаях после качественного ремонта старой квартиры вы не увидите больше ту самую «хрущевку», а результат порадует вас и ваших близких.
Подробнее о том, как сделать перепланировку 3-х комнатной квартиры в «хрущевке», вы узнаете из следующего видео.
варианты перепланировки трехкомнатной квартиры, примеры интересного дизайна комнат в «трешке»
Каждая квартира индивидуальна, как квадратными метрами, так и планировкой.
Иногда хозяева недовольны расположением той или иной комнаты. Довольно часто, для визуального расширения, приходиться ставить предметы интерьера так, чтобы комната казалось шире. Иногда не обходится и без основательного ремонта. Жильцы решаются на капитальные строительные работы, например, такие как снос стен.
Планировка «хрущевки» может стать не только утомительным, но и интересным занятием. Вы сможете сполна проявить свои дизайнерские способности. «Трешка» в кирпичном доме может стать вашим уникальным творением.
Особенности
В 1950 году появились первые дома, которые вскоре станут называть «хрущевки». Здания строили прочно и поэтому такие дома наверняка простоят еще долгое время. Конечно, из года в год проводятся ремонтные работы, которые увеличивают долговечность такого дома.
Известно, что дома такого типа планировали и строились как временное сооружение, но по стечению обстоятельств, здания стали постоянным местом жительства для многих семей.
«Хрущевки» можно определить по следующим критериям:
- очень низкое расположение потолков;
- квартира с небольшими квадратными метрами;
- ванная комната и туалет без перегородок, то есть совмещенные;
- из одной комнаты можно пройти в другую, иногда комнаты проходные;
- вы можете услышать, что твориться у соседей за стеной, шумоизоляция просто ужасная;
- холодные помещения, которые приходиться дополнительно отапливать.
Большим плюсом квартир является то, что ни одна стена не зависит от другой. Если вы затеяли ремонт, который включает в себя снос стены, то можете смело воплощать свои планы.
Нет опасений, что в любой момент из-за строительной ошибки рухнет целый дом, чего не скажешь про другие сооружения.
Планировка
Рассмотрим типичные виды 3-комнатной квартиры в стиле «хрущевка»:
- ярко выражена одна большая комната, остальные две всегда намного меньше;
- две комнаты расположены вместе и одна маленькая отдельно от них;
- комнаты, пригодные для проживания, находятся по разные стороны дома;
- комнаты изолированы друг от друга.

Преимущество таких квартир в том, что в одной из жилых комнат имеется так называемая кладовка. Это хорошо тем, что здесь обычно отводят место под верхнюю одежду. Довольно неплохой вариант сэкономить деньги и отказаться от покупки габаритных шкафов, которые значительно сокращают квадратные метры и делают комнату меньше.
Самая большая комната, в основном, становится залом для гостей. Здесь можно собираться всей семьей или компанией. Места для всех будет достаточно. Другую комнату выбирают в качестве спальни.
Последнему помещению отдают предпочтение как спальне для детей.
Необходимые документы
Ремонт и изменения в перепланировке проходят в следующем порядке.
Сначала необходимо проконсультироваться со специалистами, которые одобрят ваш эскиз новой планировки квартиры. Положительные результаты этого этапа необходимы для следующего шага – подписи и разрешения в администрации на ремонт в вашей квартире.
Необходимо предоставить документы:
- эскиз;
- рисунок квартиры с ярко выраженными изменениями;
- проект.
Если в ваших планах предоставить эскиз квартиры на бумаге, то придется собирать ряд необходимых документов. Преимуществом трехкомнатных квартир, как говорилось ранее, является встроенная кладовая или некий шкаф, который входит в планировку самой квартиры.
Поэтому, чтобы после ремонта квартира превратилась в уютное и просторное помещение, пригодное для комфортной жизни, желательно получить лицензию от организации по проектам планировки жилища.
Возможные варианты для перепланировки
Квадратные метры увеличить, к сожалению, не удастся, но перестроить и изменить помещение можно следующими способами:
- квартира-студия, полный снос всех стен;
- совмещение некоторых комнат друг с другом.

Самым «больным» местом «хрущевки» является кухня. Обычно размеры ее не превышают и 6 квадратных метров, что чаще всего не нравится хозяйкам дома. Для того, чтобы семья не теснилась в столь маленьком пространстве, кухня чаще всего подвергается перепланировке.
Бесспорное решение увеличения кухонной зоны – это соединение ее с залом. Огромным преимуществом является не только большое пространство, которое вы получите, но и дополнительное расширение ванны с туалетом. Большой семье такую комнату можно оборудовать столом для обеда и тесниться за обедом больше не придется.
Вместо стен и дверей можно использовать раздвижные перегородки. Квартира, которая находится на углу, хороша тем, что имеет на одно окно больше, чем квартиры, расположенные в середине здания.
Благодаря этому плюсу при планировке проектируется дополнительная спальная жилая комната.
Туалет и соединенные комнаты
Для увеличения пространства санитарных узлов вместо ванны устанавливают душевую кабину.
На освободившемся месте в ванной или на кухне ставят автоматическую стиральную машинку. Нередко в перепланировку включают и балкон, потихоньку соединяя его с какой-нибудь из комнат. Проблем с эксплуатацией здания и правовых нарушений не будет. Прежде чем оформлять балкон под жилое пространство, его в первую очередь утепляют, а затем оформляют под свой вкус.
Смежные комнаты – огромная проблема для семьи из трех человек и больше. Для увеличения длины коридора приходится уменьшать квадратные метры в комнатах. В конечном результате жильцы могут порадоваться тому, что не нужно больше ходить из комнаты в комнату, теперь есть коридор.
Не стоит забывать важную рекомендацию, что увеличивать туалет за счет других комнат не желательно.
Стены
Самым важным в ремонте является снос или перемещение стены.
Одна малейшая ошибка, и может рухнуть целое здание. Все смещения должны быть строго согласованы с вышестоящими инстанциями. За помощью необходимо обратиться к инженерам, которые посоветуют и нарисуют правильный эскиз квартиры с новой планировкой.
Иногда достаточно пробить небольшое отверстие в стене, применить немного фантазии и в конечном итоге вы получите потрясающую комнату. Это касается стены между гостиной и кухней. Однако не стоит забывать, что в разный период времени ее применяли, как несущую стену. Это необходимо уточнить у специалиста, чтобы не было неприятных последствий.
А теперь – несколько советов, чтобы увеличить пространство: для визуального расширения комнаты купите светлые обои с маленькими узорами, рисунком или горизонтальной полоской.
Чем застелить пол?
В отличии от современных квартир в 3-х квартирной «хрущевке» пол покрывали деревянными досками.
Срок службы такого пола не более 30 лет. Все зависит от влажности в квартире и условий эксплуатации напольного покрытия.
Не стоит забывать, что при капитальном ремонте меняется не только расположение стен, но и напольное покрытие.
Если жильцы решают покрыть пол линолеумом или ламинатом, тогда следует в первую очередь провести смену старого пола и выровнять все его недочеты. Исключением является плитка, при укладке которой выравнивание пола не требуется. Последняя идеально подходит для напольного покрытия для квартиры-студии, в которую, нередко, переделывают трехкомнатную квартиру в «хрущевке».
Если каждую стену квартиры покрыть шпаклевкой, и поклеить обои с разным орнаментом, получиться очень уютная и милая квартира.
За счет разного рисунка, стены приобретают иллюзию отдаленности друг от друга.
Потолок
Стоит взять во внимание, что не нужно приобретать для освещения огромные массивные люстры. Самым оптимальным вариантом являются точечные светильники. Низкий потолок оформляют, как и стены, в светлые цвета. В отличии от темных оттенков, светлые не «давят» на жителей квартиры. Иногда используют зеркала. Также неплохим вариантом будет использование на потолке многоуровневых ступеней, которые тоже неплохо могут зрительно увеличить квартиру.
Будьте внимательны, что при натяжном потолке или гипсокартонном покрытии от потолка часто вычитаются сантиметров, которые незаметны, но все же снижают потолок.
Иногда такие варианты для ремонта неприемлемы.
Остановите свой выбор на простой покраске, а правильно подобранные оттеночные цвета не уступят ни натяжному потолку, ни гипсокартонному.
Немного об интерьере
При выборе стиля интерьера будьте внимательны: не покупайте для маленькой квартиры с небольшим жилым пространством огромные статуи или громоздкие шкафы. Рассмотрим вариант минимализма в интерьере:
- Использование только светлых тонов, начиная от белого и, заканчивая бежевыми или бирюзовыми.
- Не стоит использовать в декорациях сложные элементы. Больше простоты, и результат не заставит себя долго ждать.
- Используйте в одной сплошной комнате цветовые зоны.
- Вместо люстры купите точечные светильники или бра.
- Ничто не заменит естественное освещение, больше окон – больше света.

Минимализм в дизайне хорош тем, что в его оформлении используются вещи-трансформеры, такие как кровать, диван или стол. Для кухни оптимальным вариантом будет гарнитур со шкафами полностью, на всю длину стены: от пола до потолка.
Не бойтесь использовать зеркало, а мебель ставить четко в угол, а не на середину комнаты.
Еще раз про свет и цвета
Трехкомнатная квартира станет в разы привлекательнее, если в дизайне использовать вазы, картины и фото в рамках. Желательно, чтобы квартира имела много окон.
Маскируйте по возможности приборы освещения, проявите фантазию, например, со светильником.
При светлых потолках и стенах акцентируют внимание с помощью «ярких пятен» в дизайне, например, красной вазы или картины с пейзажем. Не бойтесь играть с цветами и сочетать их между собой. Во многих случаях после качественного ремонта старой квартиры вы не увидите больше ту самую «хрущевку», а результат порадует вас и ваших близких.
Подробнее о том, как сделать перепланировку 3-х комнатной квартиры в «хрущевке», вы узнаете из следующего видео.
переделка трехкомнатной квартиры без перепланировки, интерьер «трешки» и планировка квартир 57-58 кв.
м и других
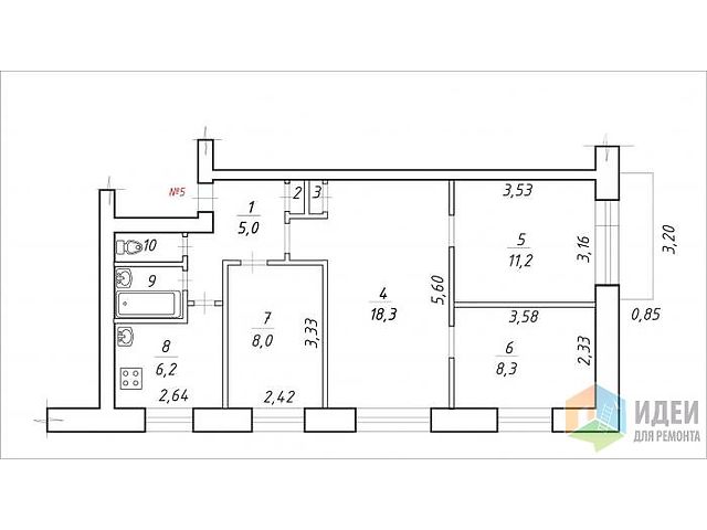
Трехкомнатная квартира является довольно интересным вариантом для дизайнера, ведь здесь не нужно ничего втискивать и выкраивать, а можно просто планировать и декорировать. Однако квартиры в «хрущевках» не могут похвастаться достаточным количеством пространства, поэтому необходимо будет разработать четкий и грамотный план, на основе которого удастся создать интересное и комфортное помещение для жизни.
Варианты планировки
Планировка 3-комнатной квартиры в «хрущевке» зависит от того, сколько именно человек будут проживать в подобном помещении. Например, если это жилище всего для одной пары, то можно провести объединение гостиной и кухни, в результате чего квартира будет казаться более крупной и вместительной.
Кроме того, при наличии балкона можно объединить его с гостиной или кухней, что также позволит получить несколько квадратных метров дополнительного пространства.
На самом деле вариантов планировки может быть множество, здесь всё зависит от индивидуальных особенностей помещения и предпочтений владельца.
Если квартира всего на 57 квадратных метрах, то имеет смысл объединить несколько комнат в одну, чтобы получить много места для отдыха и вечернего времяпрепровождения.
Способы перепланировки
Переделка помещения является довольно сложным процессом, который включает в себя огромное количество нюансов.
Следует отметить, что в основном перепланировка включает в себя снос ненесущей стены, которая позволяет объединить помещение или изменить его границы. При этом стоит помнить о том, что подобные работы можно проводить исключительно при условии получения разрешительной документации от государственных органов. В противном случае за это можно получить огромные штрафы и предписание снова вернуть всё на прежнее место.
Обычно в первую очередь перепланировка проводится на кухне, так как данное помещение в «хрущевке» не может похвастаться большими габаритами и кажется всегда изолированным.
В результате чувствуется теснота, нет возможности установить дополнительную мебель или столик для приёма пищи. Идеальным выходом из ситуации станет совмещение кухни и гостиной, которое позволит получить дополнительное пространство для каждого помещения и сделает результат более приемлемым и комфортным. Разумеется, при этом необходимо будет постараться для того, чтобы создать зонирование. Сделать это можно при помощи использования различных материалов при отделке напольного покрытия из разных цветов.
Выбор стиля
Трёхкомнатная квартира благодаря особенностям планировки и довольно большим габаритам может оформляться практически в любом стиле, однако всё равно необходимо принимать во внимание огромное количество моментов.
Среди наиболее популярных и востребованных на сегодняшний день можно выделить несколько стилистических направлений.
-
Классика. Главная особенность данного направления в том, что здесь всегда должны быть четкие геометрические формы и симметрия. Допускается использование всего нескольких цветов, аксессуары должны быть выразительными. Нередко основным элементом интерьера, который оформлен в данном стилистическом направлении, является люстра. Если помещение не может похвастаться высокими потолками, то отличным решением станет использование особой подсветки. Интерьер, который декорирован в классическом стиле, отличается наличием тяжёлой мебели и других подобных предметов.
- Лофт. Отличительными чертами данного стилистического направления являются урбанистическая направленность, большое количество свободного пространства и использование различных уникальных предметов мебели.
Стена может отделываться под кирпич, включает в себя различные металлические вставки и светильники. Идеальным решением при оформлении трёхкомнатной квартиры в таком стиле является использование модульной мебели, которая не только отличается своей привлекательностью, но и характеризуется невероятно функциональностью. А при желании гарантировать максимально высокий уровень комфорта и света необходимо использовать гладкую штукатурку, которая позволяет визуально увеличить пространство.
- Неоклассика. Данное направление сегодня пользуется довольно большой популярностью благодаря симметричности форм и возможности применять множество декоративных элементов. Неоклассика представляет собой комбинацию классики и современного стиля. Мебель, которая используется в процессе обустройства, отличается средними габаритами, а цветовые решения могут выбираться на основе личных предпочтений владельца. В процессе отделки стен лучше всего использовать белый или серый, однако при желании можно выбрать и другие менее сдержанные варианты.
Нередко в процессе создания дизайна гостиной используется биокамин, а в спальне отличным решением станут шкафы с зеркальными поверхностями.
- Минимализм. Главными особенностями данного стиля являются лаконичные формы и отсутствие лишних элементов. В процессе выбора мебели необходимо подбирать только те варианты, которые отличаются функциональностью и будут постоянно использоваться. При желании обеспечить интерьеру интересный и незаурядный внешний вид можно использовать различные акценты. Пристальное внимание следует уделять подушкам, мебельным фасадам. Кроме того, важное значение имеет гардина, которая должна отличаться максимальной простотой, не включает в себя никаких классических деталей и узоров.
Как расставить мебель?
Для того чтобы трёхкомнатная квартира отличалась максимальным уровнем комфорта и удобства, необходимо пристальное внимание уделить процессу выбора и расстановки мебели.
Не нужно захламлять помещение, используя как можно больше предметов интерьера. Лучше всего отдать предпочтение модульной мебели или трансформерам, которые отличаются небольшими габаритами, но при этом могут похвастаться невероятной функциональностью. Например, для «трешки» всего в 58 кв. м такой вариант станет просто спасением.
Для гостиной отличным решением станет использование большого дивана светло-серого оттенка, что обеспечивает высокий уровень комфорта, а также позволит визуально увеличить пространство. Над диванами можно использовать различные полки и стеллажи, которые станут отличным пристанищем для книг, фотографий и других аксессуаров. Если размеры гостиной позволяют, то можно также установить небольшой обеденный стол, что снимет нагрузку с кухни и сделает её более просторной.
Отдельное внимание в процессе выбора мебели необходимо уделить санузлу, который зачастую в «хрущевке» характеризуется небольшими размерами.
Лучше всего отдать предпочтение душевой кабине, которая позволит выделить место под стиральную машину и различные другие предметы мебели.
Виды и этапы ремонта
В процессе проведения ремонтных работ в обязательном порядке необходимо использовать только качественные материалы, которые отличаются долговечностью и безопасностью. Ремонт в трёхкомнатной «хрущевке» включает в себя несколько этапов.
-
Демонтаж старых покрытий, коммуникации и проводки. Особенное внимание в данном процессе необходимо уделить удалению напольного покрытия и его выравниванию, благодаря чему удается сделать помещение максимально ровным и привлекательным.
- Укладка нового напольного покрытия и отделка стен.
После того как ламинат или паркет уложены на пол, можно приступать к отделке стен. Для этого отличным решением станет использование обоев, краски или различных фактурных материалов.
- Отделка потолочного покрытия. Сегодня оптимальным решением является натяжной потолок, который характеризуется своей привлекательностью и доступной стоимостью.
Таким образом, ремонт трехкомнатной квартиры в «хрущевке» включает в себя огромное количество нюансов, на которые нужно обращать внимание при желании создать максимально комфортный для жизни интерьер.
Важное значение имеет всё начиная с особенностей планировки и заканчивая выбором и расстановкой мебели.
Планировка для двухкомнатной квартиры в хрущевке
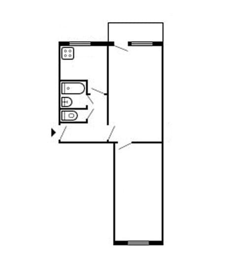
Двухкомнатная квартира – оптимальный вариант жилья для небольшой семьи. Здесь есть все необходимое для комфортного проживания: раздельные комнаты, санузел, компактная кухня, балкон, иногда встречается небольшая кладовка под бытовые мелочи. На постсоветском пространстве наиболее распространенной считается планировка двухкомнатной квартиры в хрущевке со смежными комнатами, небольшой по размеру кухней и очень маленьким санузлом.
Популярны следующие виды планировок:
- Серия П-44 с общей площадью 50,2 кв. м или 57,8 кв. м
- Серия И-155 с общей площадью от 50 до 75 кв. м и кухней 10-12 кв. м
- Квартиры, в которых совмещена гостиная и спальня
- Квартиры в монолитных домах бизнес-класса с общей площадью от 75 кв. м и выше
Первый вариант жилого помещения является классическим. Большинство квартир в панельных и кирпичных домах сделаны по принципу «распашонки» с двумя раздельными комнатами, окнами, выходящими на разные стороны дома, и кухней площадью 4, 8 или 10 кв. м. Существуют также линейные планировки двухкомнатных квартир – их окна выходят только на одну сторону дома.
Планировка серия П-44
Серия И-155 представляет собой современные дома улучшенной планировки с множеством этажей и фасадов. Жильцы таких двухкомнатных квартир имеют две широкие раздельные комнаты, вместительную кухню площадью от 10 до 12 кв.
м и просторную лоджию. Этот вариант планировки можно найти в домах серии КОПЭ-М и КОПЭ-М-Парус.
Планировка серия И-155
Другой вид планировки, который так же пользуется большой популярностью, позволяет визуально увеличить размеры квартиры, путем совмещения гостиной и спальной комнаты. К данному варинату выгоднее прибегать, когда вы хотите расширить свою гостиную комнату, чтобы разместить в ней больше гостей или сделать просторный домашний кинотеатр.
Планировка квартиры с совмещенной гостиной и спальней
Обстановка монолитных домов бизнес-класса говорит сама за себя. Это квартиры, сделанные по специальным проектам, имеющие гибкую планировку, в которой комнаты можно объединять с ванной, кухней, лоджией. Площадь 2-х комнатных квартир здесь не ограничена и стартует от 75 кв. м. Такие планиировки очень распространены в новостройках.
Планировка квартиры в монолитных домах бизнес-класса
Как же грамотно продумать и реализовать планировку?
Сделать идеальную расстановку в двушке под силу далеко не каждому, ведь этот процесс довольно трудоемкий, требующий определенных навыков и знаний.
Поэтому некоторые жильцы обращаются к специалистам, которые занимаются дизайном интерьера. Данный вид услуги стоит немаленьких денег, отсюда многие семьи продолжают жить в условиях, абсолютно их не удовлетворяющих. Выход из этой ситуации достаточно прост. Программа Sweet Home 3D позволяет моделировать интерьер любой квартиры, делая его уникальным, оригинальным и адаптируя под все нужды жильцов. Интуитивно понятный интерфейс, русскоязычное меню и множество простых функций дают возможность создать уникальную планировку 2 комнатной квартиры.
Сделать помещение привлекательным – легко!
Программа Sweet Home 3D идеально подходит тем, кто мечтал попробовать себя в дизайне интерьеров. Теперь не нужно ломать голову над тем, куда бы поставить большой любимый шкаф, доставшийся в наследство от бабушки, и будет ли он сочетаться с современным комодом и плазменным телевизором. Один клик мышкой – и шкаф, созданный в программе, перемещается в лучшее для него место. Русифицированная версия содержит множество уникальных функций:
- Более 450 материалов отделки
- Более 100 современных образцов мебели
- Разнообразные виды современных планировок
- Разнообразные виды современных планировок
Собственная планировка двухкомнатной квартиры — это просто, ведь программа Sweet Home 3D с легкостью поможет вам в этом.
Благодаря ее уникальным возможностям вы получите массу оригинальных идей для улучшения жилищных условий и дизайна интерьера, а также без труда освоите базовый уровень 3D-моделирования. В программе доступны различные варианты жилья, в том числе перепланировка однокомнатной квартиры. Скачайте ее и убедитесь – планировка 2 комнатной квартиры может быть полезным и очень приятным занятием.
Планирвока двухкомнатной квартиры в программе Sweet Home 3D
Вы можете cкачать Sweet Home 3D в два клика на любую операционную систему Windows XP, Vista, 7, 10. Благодаря встроенной функции автообновления вам всегда будут доступны самые актуальные тенденции из области дизайна интерьеров. Библиотеки Sweet Home 3D содержат различные варианты планировок, от стандартных хрущевок до современных элитных апартаментов. Вы можете выбрать уже готовую планировку или создать собственную, ориентируясь на личные вкусовые предпочтения. По окончанию работы в программе можно сохранить готовый проект на компьютер.
Дизайн интерьера небольших квартир
Кто бы мог подумать, что почти без изменения планировки в этой трёхкомнатной хрущёвке может столько уместиться, а интерьеры будут казаться такими просторными, что любой обитатель «крупногабаритки» позавидует.
На фото:
Белый цвет – настоящее спасение для маленьких и плохо освещённых интерьеров, какие и были прежде в этой квартире. Чтобы избежать «больничной скуки», дизайнер изобретательно расставила красивые звучные акценты, в том числе использовав немало вещей из семейной коллекции. Нестандартное решение – объединить в большой комнате функции спальни, столовой и гостиной – позволило освободить соседнюю комнату, превращённую в кабинет, необходимый для работы дома.
Информация об объекте:
Место: Нижний Новгород
Метраж: 56,9 кв.
м
Год: 2012
Автор проекта: Анна Киселёва
Фото: Валерий Шибанов
На фото: Анна Киселёва, дизайнер интерьеров
Квартира для молодой супружеской пары дизайнеров оформлялась с учётом требований минимизации бюджета. «Раздвинуть» границы и впустить свет помог белый цвет стен, потолков, дверей и части мебели.
Учтено возможное появление ребёнка (смежная с гостиной-спальней комната, гипотетическая детская, пока оставлена почти пустой). Над проёмом между прихожей и кухней автор и исполнители проекта собственноручно соорудили антресоль, а также отреставрировали два серванта и комод. Часть мебели изготовлена по их эскизам с учётом маленьких габаритов помещений. Дерево тёплых оттенков дополнено яркими деталями декора, в основном текстильными. Интересные акценты внесли вещи советских времён и дореволюционной поры, части из них нашлось вполне практическое применение.
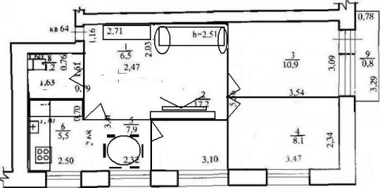
До перепланировки квартира состояла из маленьких комнат и крохотной кухни.
Их оставили в прежних границах.
После перепланировки изменения минимальны, но значимы. Дверь в кабинет чуть сместили, чтобы в углу поместился компактный диванчик, он же дополнительное спальное место для двух гостей. В кухне была передвинута газовая колонка (для этого пришлось согласовывать с газовыми службами обрезку трубы), над рабочей поверхностью повесили вместительный шкаф. В санузле поменяли расположение унитаза, развернув его на 90 градусов: кроме удобства (не надо, как прежде, садиться боком) освободилось место для большой бельевой корзины.
Каждая деталь крохотной прихожей обещает интересное «развитие событий» в интерьерах: обитая розовой кожей входная дверь с изящной ручкой, обшитая досками ниша с компактной вешалкой и обувницей и даже оставшаяся на виду и окрашенная в цвет стен труба.
Напольное покрытие (линолеум, уложенный на фанеру) во всех комнатах, включая кухню, одинаковое: такой приём в сочетании с одинаковым цветом стен делает дизайн интерьера малогабаритных квартир более цельным и не спорит с цветовыми акцентами.
Нижнюю часть антресоли между кухней и прихожей снаружи обшили вагонкой, тонированной в цвет пола.
Простенок между комнатами со стороны коридора оклеили обоями, напоминающими «весёленький ситчик». Зато все остальные детали этой мизансцены – белые. Два старых «бочонка» для круп приспособили для хранения обувной косметики и щёток.
Над раскладным диваном, который служит хозяевам двуспальной кроватью – выставка семейной коллекции арт-объектов, на фоне белой стены разностильные вещи отлично ужились друг с другом.
Главные декоративные акценты в гостиной расставлены благодаря текстилю. Менять их по мере желания, а заодно и настроение комнаты, не составит труда. Интересная деталь: две шторы с разным рисунком, современным и винтажным, обыгрывают «связь времён».
Вместо ожидаемого скучного телевизора на стене напротив дивана – биокамин. Под ним многофункциональная тумба: это и полка для сувениров, и скамья, а на время сна – место хранения диванных подушек.
В торце комнаты – платяной шкаф, почти невидимка, сливающийся со стенами.
Модные зелёный и голубой, в которые одеты подушки, особенно выигрышно смотрятся на ахроматическом фоне. Таких ярких акцентов не должно быть много: главное – правильно их подать.
Минималистичные часы (как и светильник в кабинете), изготовлены Николаем Бугровым (bugrov.pro) – лаконичный акцент в зоне, где главную роль должен играть живой огонь.
Несколько аксессуаров, собранных в группу, где они эффектно оттеняют друг друга, смотрятся гораздо выразительнее, чем по отдельности.
Отреставрированный комод и сервант с коллекцией фарфора гармонируют с цветами современного стола и пола, поэтому вся композиция столовой зоны смотрится необычайно цельно и естественно.
Массивные крестообразные опоры столешницы соседствуют с почти незаметными тонкими белыми ножками стульев: учёт таких нюансов поддерживает общее впечатление свободного пространства.
Нестандартное сочетание светильников: пара металлических плафонов в скандинавском стиле над столом и потолочная «тарелка» в зоне отдыха, будто прилетевшая из 60-х. Их соседство выглядит естественным на фоне шторы с ретро-дизайном.
Функциональная эстетика кухни смотрится свежо и даже кокетливо, хотя местоположение всех предметов и их габариты рассчитаны скрупулёзно. Навесной шкаф поместили выше обычного, чтобы под ним уместились два ряда релингов для кухонных аксессуаров.
Недорого, но стильно: обычный фартук из белой кафельной плитки превращается в изысканное ретро благодаря чёрной затирке швов, эта графика гармонирует с дизайном бытовой техники. Столешница под дерево и жёлтые газовые краны внесли «солнечные» нотки.
Выставка подстаканников советских времён, начищенных до блеска, органично вписалась в концепцию современного жилья, где с уважением относятся к корням и традициям.
Интересные старые вещи отлично уживаются с современными и простыми, главное в таком соседстве – соблюдение цветового баланса и правильный выбор акцентов.
Отсутствие пестроты и уважение к функциональным вещам, таким, как газовая колонка, которые не стали прятать и маскировать, сделали эту кухню по-настоящему удобной. Все модули снабдили практичными длинными ручками.
Между шкафом с посудой и встроенным холодильником с одной стороны и дверью – с другой поместили маленький барный стол на двоих, чтобы перекусывать на скорую руку. «Основательные» трапезы проходят в гостиной-столовой.
Рабочий стол с оргтехникой, удобное кресло на колёсиках, книжный стеллаж и мольберт – в этом кабинете уместилось всё, что нужно для творческой работы в домашних условиях, и при этом комната выглядит свободной. Секрет в цветовом решении и выборе компактной мебели, за исключением большого рабочего стола.
Смелое сочетание чёрных портьер и белой узорной органзы придало кабинету индивидуальность. Но это также весьма практичное решение: лёгкие занавеси защитят от прямых лучей солнца, а плотные чёрные создадут в случае необходимости отличное затемнение.
Минималистская люстра отлично сочетается с практичной эстетикой кабинета и к тому же не спорит с выставкой на полке под потолком.
Старую кладовку отреставрировали и превратили в хранилище для обширной библиотеки.
В маленькой ванной уместился солидный набор сантехники – и всё благодаря точным расчётам габаритов каждого предмета. При этом места хватило и на напольную модель унитаза, и умывальник, установленный на двухдверную тумбу.
Смелое решение – отделка пола крупной «шахматной» плиткой (обычно считается, что такие детали визуально уменьшают интерьер) и звучные бирюзовые акценты придали ванной инвидуальность.
Винтажные детали присутствуют и в ванной комнате: зеркало в «резной» раме (на самом деле выполненной из пластика и окрашенной в нужный цвет) и подставка для зубных щёток – старая керамическая кружка для минеральной воды с ручкой-трубкой для питья, которая утратила основную функцию, зато приобрела новую и украсила собой интерьер ванной.
Дизайн комнаты 3 на 3 кв. м (57 фото): проекты модных интерьеров квадратной комнаты 9 кв. м, удачный дизайн узкой гостиной в хрущевке
Мечта каждого – иметь в доме уютную большую комнату, которая могла бы совмещать в себе несколько функций. Такую возможность предоставляет жилье в новостройках. А вот обычные «хрущевки» и квартиры в старых жилых домах не оставляют выбора — там комнаты маленькие, узкие, проходные и квадратные размером 9 квадратных метров.Комнаты размерами 3 на 3 метра доставляют владельцам много проблем. Их непросто обустроить и придется отказаться от популярного сегодня зонирования. Но если подойти к ремонту и дизайну таких помещений с умом, разработать подробный проект, можно легко создать интересный и функциональный интерьер.
ИзображениеИзображениеИзображениеОсобенности
Несмотря на все сложности маленьких комнат, у квадратных комнат есть три особенности, помогающие в разработке проекта интерьера:
- Симметрия .
Это считается достоинством, упрощающим задачу создания дизайна помещения. Такие зоны оформить проще, чем узкие вытянутые варианты. Квадратные комнаты легче воспринимаются, они скрывают выступы и ниши в случае прямоугольной планировки;
- Универсальность . В комнате 3 на 3 можно сделать спальню, кабинет, детскую, гостиную. Также при необходимости допускается совмещение функций помещений. Например, гостиная совмещена с кабинетом или спальней;
- Возможность применения любых стилей и комбинаций .Современный стиль с причудливыми формами и аксессуарами отлично подойдет для маленькой спальни, лаконичный минимализм со сдержанным декором – для гостиной, а эко-стиль впишется в рабочий кабинет.
Цветовая гамма
Цветовая палитра играет важную роль в интерьере комнаты 3 на 3 кв. Специалисты советуют обратить внимание на следующие оттенки и техники комбинирования:
- Белый .
Оптимальный цвет, визуально расширяющий пространство. Главное преимущество в том, что он позволит подобрать мебель и аксессуары абсолютно любого цвета.Также его можно разбавлять натуральной палитрой – древесными оттенками и молодой зеленью, создавая разное настроение и стиль;
- Темные оттенки . Они не расширят пространство, но создадут иллюзию размытости границ. Коричневый, синий, бордовый, горчичный, изумрудный, фиолетовый действуют успокаивающе на эмоциональный фон, обволакивают и расслабляют;
- Игра на контрастах . Стильный прием, который поможет скорректировать пространство.Например, излюбленный прием дизайнеров – окрашивание одной стены в темный цвет или использование фотообоев;
- Нейтрально-серый . Этот цвет олицетворяет благородство и изысканность. Его используют как самостоятельно, так и в сочетании с более темными или светлыми оттенками из-за разницы в интенсивности.
Создает интересный звук с яркими желтыми, бирюзовыми, розовыми и голубыми тонами;
- Пастельные тона . Они популярны за свою легкость и способность сочетаться с другими цветами.Они успокаивают, настраивают на отдых, поэтому чаще используются в спальнях.
Отделка
Отделочные работы – важный этап в дизайн-проекте помещения. Все отделочные материалы должны быть высокого качества, чтобы обеспечить максимальное время эксплуатации и экологичность.
- Для пола подходят ламинат, паркет, простая деревянная доска, пробка. Пробка обладает уникальными свойствами – она натуральная, снимает напряжение с ног, сохраняет тепло, звукоизолирует помещение;
- Для расширения пространства покрытие раскладывают по-разному – по диагонали, в шахматном порядке, комбинируют материалы разных цветов.Главный нюанс заключается в том, что пол следует сделать на несколько тонов темнее потолка.
Это визуально сделает помещение просторнее и шире;
- Для украшения стен не нужно придумывать что-то оригинальное. Покраска – самый простой и универсальный способ. Чаще всего используется одна цветовая схема. Покраска стен и потолка в один цвет стирает границы между ними;
- Второй вариант — обои. При выборе рисунка, орнамента, другого принта учитывается стиль помещения.Минимализм предполагает геометрию в виде различных фигур, классика – цветочные мотивы. Крупные рисунки следует оставлять для больших комнат, иначе будет поглощаться пространство;
Потолок в комнате 9 кв м должен быть неброским и однотонным. Оптимальный цвет – белый или слоновая кость. Что касается конструкций, то специалисты советуют отказаться от многослойности, которая выглядит слишком тяжелой и громоздкой. Для визуального расширения помещения и придания ему легкости допускается установка на потолке ниш с осветительными приборами
ИзображениеИзображениеИзображениеМебель
Комплект мебели зависит от назначения комнаты.
Но есть одно общее правило – не загромождать маленькую комнату большим количеством предметов. Если комната используется как спальня, следует уделить особое внимание местам для хранения вещей. Это могут быть встроенные шкафы-купе, шкафы-купе, модульные модели и угловые модели. Желательно, чтобы они были оснащены дверцами с большими зеркалами.
ImageImageImageImageЦентральным местом спальни является кровать. Он должен быть аккуратным и коротким. Громоздкая модель даст эффект тесноты пространства, а широкая визуально сделает комнату еще меньше.Дизайнеры советуют кровать не придвигать к стене, а подходить к ней с двух сторон, поставив прикроватные тумбочки со светильниками. С противоположной стороны можно повесить телевизор, исключив использование подставок и тумбочек.
В углу комнаты, если позволяют оставшиеся квадратные метры и при необходимости устанавливается туалетный столик или обычный небольшой журнальный столик.
Гостиная меблирована обычным или угловым диваном, телевизором, полками и журнальным столиком.В кабинете размещают компьютерный стол, кресло, тумбы с полками для размещения книг, а для отдыха можно поставить кресло-качалку. Маленькая детская комната позволяет проявить фантазию в плане выбора мебели. Комбинированное спальное место с местом для хранения, рабочим столом, игровым комплексом – отличный вариант для небольшой квадратной комнаты.
ИзображениеИзображениеКрасивые варианты интерьера
Может показаться, что на площади 9 кв м мало что можно сделать из дизайн-проектов.Однако это совсем не так. Следующая подборка покажет, как можно использовать каждый квадратный сантиметр комнаты максимально полезно и оригинально:
- Лаконичный дизайн спален — спокойный, уютный и минималистичный. Цветовая гамма идеально подчеркивает конфигурацию комнаты, не скрадывая пространство. Белый цвет в сочетании с темными тонами создает благородное и расслабляющее звучание.
Мебели очень мало, но в сочетании с двухуровневым потолком она создает иллюзию большой, наполненной светом комнаты;
- Яркий, жизнеутверждающий салатовый цвет – то, что вам нужно детская комната … Белый потолок и пол – именно они расширяют пространство, раздвигая стены.Экономия места благодаря функциональной мебели, сочетающей в себе систему хранения, спальное место и игровую зону. Шкаф и стол выполнены в одном стиле, они не загромождают комнату, наоборот, дополняют ее и завершают весь интерьер;
- Кабинет совмещенный с прихожей — отличный вариант для хрущевок. Угловой стол, диван и телевизор — это минимальный набор мебели, необходимый для таких помещений. С другой стороны, фотообои с урбанистическим рисунком делают комнату шире и добавляют ей нотку необычности;
- Маленькая уютная гостиная — здесь нет ничего лишнего, все на своих местах.
Бежевые тона создают изящную атмосферу, белый потолок наполняет комнату светом, а яркие аксессуары расставляют акценты.
Планировка трехкомнатной квартиры. Типовые планировки квартир План трехкомнатной квартиры в Ленинградской планировке
В сегодняшней статье мы расскажем вам о возможных планировках трехкомнатной квартиры, которые были разработаны талантливыми мастерами и дизайнерами.
Насладимся представленной фотографией и рассмотрим уникальные идеи и решения, реализованные в этих моделях рационального и многофункционального декора.
2 Макет от Aegis.На этом чердаке есть несколько спален с полностью естественным и эстетичным дизайном интерьера. Номер оформлен в нейтральных коричневых и серых тонах. Проектом предусмотрено четыре отдельных открытых патио.
3 Макет Astin Studios. Этот просторный дом идеально подойдет для пары. В квартире индивидуальный санузел для каждой комнаты и отдельный гостевой санузел в коридоре.
Зоны отдыха на открытом воздухе дополняют эту современную роскошную планировку.
4 Визуализатор Astin Studios.Еще одна интересная планировка включает в себя самую большую спальню с белым мраморным полом, зону отдыха и приемную, а также гардеробную.
5 Шедевр из Тайного Мира.Эти апартаменты оформлены в нейтральной бежевой цветовой гамме с интересными акцентами в виде дерева и яркой мебели.
6 Концепт из Тайного Мира.Следующая схема украшения аналогична предыдущей. Отличие заключается в ином расположении комнат и смещении стилистических нюансов.
7 Идея от Astin Studios.Рациональная расстановка мебельных гарнитуров и грамотное зонирование позволяют владельцам проводить время в комфортной и располагающей обстановке.
8 Источник: Brides At Kendall Place. 9 Креативная концепция от Guillermina.Вот еще один пример планировки, подходящей для небольшой семьи. Два будуара позволят домочадцам уединиться.
При этом уютная и современная гостиная достаточно просторна для семейных торжеств, а окна, выходящие на обе стороны, делают ее светлее и визуально расширяют.
Этот небольшой и интересный проект учитывает интересы всех членов большой семьи. Предусмотрена задняя комната для размещения братьев и сестер.
На веранде оборудована обеденная зона с шезлонгами. Такое расположение позволяет устраивать застолья на свежем воздухе в теплое время года. В этом случае на участке есть два входа: из гостиной и спальни.
11 Макет Supertech Supernova.В данной планировке стандартные окна переделаны в панорамные.Они пропускают много дневного света. Спальни расположены крайне рационально, так что на оставшейся площади можно организовать рабочую зону и кладовку. Террасы с обеих сторон дома предоставляют множество возможностей для отдыха и приятного времяпрепровождения.
12 План со стороны 9-й улицы Полумесяца.Этот интерьер в пляжном стиле выполнен в белом цвете с добавлением оттенка морской волны. Этот дизайн навевает воспоминания о Кейп-Коде или любом другом приморском городе.
Небольшие спальные зоны расположены вокруг просторной гостиной с патио, оставляя достаточно места для полного расслабления.
Доказательством того, что вам не нужны дополнительные квадратные метры, является следующая схема конструкции. Главный будуар с ванной комнатой и две небольшие комнаты для детей и гостей создают идеальную обстановку.
14 Визуализатор Прадипта.Многие домовладельцы могут не заметить роскошные встроенные шкафы, которые делают этот дизайн стильным и практичным.
15 Шедевр от Media Contact. 16 Источник фото Landtrades.Этот дизайн придает большое значение внешней среде и признает важность конфиденциальности.Здесь у каждого будуара есть собственный балкон, позволяющий жильцам уединиться в случае необходимости. Для общения предусмотрена столовая и просторная кухня.
17 Концепт от Tech N-Gen.Оригинальное украшение выдержано в синих, коричневых и бежевых тонах. Такой интерьер выглядит стильно и привлекательно.
18 Идея от Tech N-Gen. Эта квартира светлая и просторная, хотя в ней может не хватать места для хранения вещей. В номерах есть только небольшие шкафы, что создает очаровательную атмосферу минимализма.
Следующая планировка рациональна и практична. Большое количество комнат для отдыха и работы позволит каждому из жильцов организовать свой уголок.
20 Проект от Domaine in Villeboise.На этой схеме показан функциональный интерьер. Имеется вместительный гостевой салон с обеденным столом и кухонной зоной.
21 Планировка от Domaine at Villeboise.Данная планировка имеет большую площадь, что позволяет организовать спальные и рабочие помещения с учетом пожеланий всех жильцов.
22 Макет от Dowling Jones Design.В квартире предусмотрено сочетание гостиной, столовой и кухни. Только спальни остались изолированными, что дает возможность побыть одному, когда это необходимо.
23 Источник: Перекрёсток Охотников.Большой и чрезвычайно интересный проект дома отличается лаконичным стилистическим исполнением и нейтральной цветовой палитрой в отделке.
24 Визуализатор Отступление. Этот вариант подходит для небольшой семьи с детьми.
Очаровательная минималистичная квартира небольшой площади.
26 Концепт от Camden.Трехкомнатная квартира с современным и ненавязчивым декором, что делает ее идеальным убежищем для спокойного отдыха или временным убежищем для путешествующих руководителей.
27 Идея от Медиа Студии Арх.Этот красочный шедевр создан с использованием белой плитки от пола до потолка и ярких акцентов. Это может быть идеальным местом для семьи или группы друзей на пляже.В каждом номере есть отдельная ванная комната. Несколько балконов оставляют достаточно места для принятия солнечных ванн.
28 План от Media Studio Arch.Оригинальный чердак с просторными террасами в стиле модерн.
29 Креативная концепция от Rohan Corporation.Потрясающее произведение искусства в контрастной цветовой гамме.
30 Проект от Morpheus Group.Светлая красочная квартира скромной площади.
31 Компоновка Assotech. Исключительная трехкомнатная квартира с крошечными пространствами.
Светлые и просторные террасы делают этот роскошный вариант для любой семьи.
35 Шедевр от Budde Design.Грамотная планировка позволила не только обустроить необходимые для комфортной жизни помещения, но и выделить место под гараж на две машины, а также открытую площадку.
36 Концепция от Budde Design.Великолепная постройка необычного дома.
37 Идея от Budde Design.Практичный и рациональный дизайн позволит семейной паре провести время в комфортной и уютной обстановке.
40 Проект от Budde Design.Креативное размещение комнаты позволяет членам семьи идеально спланировать пространство.
41 Макет Саурабха Гупты.Нестандартные приемы в оформлении интерьера создают удивительную атмосферу. А три балкона позволяют организовать личные зоны отдыха для каждого из жильцов.
42 Макет от PCMG.Нейтральная цветовая гамма этого дизайна наполняет дом светом и уютным теплом.
43 Визуализатор двора Питти. Яркая цветовая гамма освежает интерьер, привнося в него положительные нотки и особый шарм.
Дома серии П-44Т могут иметь высоту от 9 до 25 этажей, количество подъездов — от 1 до 8. Но самый распространенный вариант — 14- и 17-этажные дома. Технология «закрытых стыков», применяемая при строительстве таких домов, способствует высокой тепло- и звукоизоляции. Стоит отметить надежную систему безопасности: контроль входа в подвал, в электрощитовую, на чердак. Действует система оповещения о пожаре или наводнении. Наружные стены таких зданий отделаны «под кирпич» и «под натуральный камень».
Серия П-111М
П-111М представляет собой серию крупнопанельных домов высотой 10, 12, 14 и 17 этажей. Дома этой серии состоят из прямых секций. Отличительной особенностью зданий являются закругленные по краям балконы. В отделке и строительстве фасадов используются различные материалы – поэтому дома этой серии бывают как панельными, так и панельно-кирпичными. Серия П-111М соответствует всем стандартам огнестойкости и безопасности.
Серия П-44К
П-44К представляет собой серию 17-этажных домов с 1- и 2-комнатными квартирами.
Первый этаж таких домов нежилой, со 2 по 17 расположены 64 квартиры. На участке 4 квартиры: две 2-комнатные и две 1-комнатные. Высота потолков — 2,7 м. Преимущество этой серии – просторные кухни. Впервые дома этой серии начали строить в 2005 году.
Серия ПИК-1
ПИК-1 — новая промышленная серия, в ней использованы современные архитектурные решения: светлые фасады, модернизированный вид оконных блоков, отсутствие межпанельных швов, есть место для кондиционеров.Особое внимание в серии ПИК-1 уделено разработке планировочных решений. Въезд в подъезды осуществляется без ступеней и пандусов.
Серия ДОММОС
Здания серии ДОММОС разработаны ГВСУ «Центр». Срок строительства домов этой серии 6-12 месяцев, высота домов 6-9 этажей. Облицовка выполнена немецкой клинкерной плиткой. Производственный процесс полностью роботизирован. Особенность этой серии – наличие французских балконов, кроме того, все квартиры оборудованы балконами и лоджиями.Витражное остекление выполняется в алюминиевых переплетах.
КОПЭ серии
Всего существует 7 серий КОПЭ, среди них: КОПЭ-Башня-М, КОПЭ-80, 85, 87, 2000. Различия между этими типами незначительны, чаще всего проявляются по количеству квартир. В основном дома этой серии представляют собой строения высотой от 10 до 22 этажей, состоящие из нескольких секций. Чаще всего в строительстве встречаются 18- и 22-этажные дома серии КОПЭ.
КОПЭ-Башня серии
КОПЭ-Вышка — одновходовая версия серии КОПЭ-М-Парус.Дома этой серии начали строиться в 2008 году. Этажность 23-25. Первые этажи нежилые, в них расположены коммерческие помещения. Особенностью КОПЭ-Тауэр является наличие округлых лоджий, эркеров и полуокон. Кроме того, в квартирах этой серии увеличены площади кухонь, в 2-х, 3-х и 4-х комнатных квартирах появилось небольшое окно в коридоре.
Серия П-3М
Дома серии П-3М впервые появились в 1996 году.Это 8-17-этажные дома со светлыми фасадами и 1-4-комнатные квартиры. Также ведется строительство домов серии П-3М с подземным паркингом.
Используется современная система безопасности, автоматическое включение дымоудаления при пожаре. Двухуровневое водоснабжение.
Серия П-3МК Флагман
Флагманская серия П-3МК является модификацией П-3М. Впервые дома этой серии начали строить в 2004 году. Это 17-18-этажные дома, состоящие из нескольких секций (от 3 до 6).Отличительной особенностью является повышенная теплоизоляция наружных панелей, кроме того в домах улучшены планировки квартир, возможна перепланировка.
СерияЕвро «Па
Панельные дома серии Евро»Па начали возводиться в 2009 году. Первые этажи занимают как жилые, так и нежилые помещения. Высота зданий 17-25 этажей. Средняя высота потолков 2,61 м, возможна быть увеличена. В домах серии Евро»Па отсутствуют проходные помещения, повышенная звуко- и теплоизоляция.
Серия И-155
Серия И-155, разработанная в 2000 году, позволяет строить дома различной конфигурации (как многосекционные, так и башенного типа), высотой от 10 до 24 этажей.
Основными элементами этой серии являются трехслойные наружные панели (их длина 7,2 м), в зданиях башенного типа до 8 этажа – монолитные. Толщина наружных фасадных стен 320-400 мм, торцевых стен 440-540 мм.
Евро серия
Евро — панельные малоэтажные дома, в Московской области, производитель ОАО «Завод ЖБИ-6».Основным отличием от других серий является технология отделки фасадов, которая гарантирует отсутствие межпанельных швов в зданиях, а это способствует хорошей теплоизоляции и долговечности. В этой серии есть два основных типа домов – Евро-8 и Евро-12.
Серия РД-17.04
РД-17.04 является модификацией серии РД-90. Дома этой серии имеют высоту от 9 до 17 этажей (наибольшей популярностью пользуются 17-этажки), первые этажи в основном жилые.Фасады выполнены в различных цветах, возможна установка вентилируемого фасада. Дома серии РД-17.04 используются как при точечной застройке, так и при возведении масштабных комплексов.
Лаймовая серия
Дома серии Липа начали строить относительно недавно – в 2014 году.
Это многосекционные дома (2 и более секций), высотой до 25 этажей. При строительстве используется бесшовная технология утепления фасада. Главное отличие этой серии в планировке, в квартирах гостиная и кухня совмещены.
ДомРик серии
ДомРик — серия панельных домов, разработанная ДСК-1. Впервые дома этой серии начали строить в 2014 году, но проект был разработан еще в 2012 году совместно с испанским архитектором Рикардо Бофилла. Особенности здания: гладкий фасад, функциональные планировки, места для кондиционирования. Максимальное количество таких домов – 17 этажей. Представлены 1-, 2- и 3-комнатные квартиры.
Град-1М серии
Серия «Град-1М» разработана ДСК «ГРАД».Дома построены по модульному принципу, есть множество вариантов планировочных решений. Высота зданий до 17 этажей. Здания этой серии отличаются высоким уровнем шумо- и теплоизоляции, кроме того, можно отметить высокое качество отделки и разнообразие фасадных решений.
Серия П-44ТМ/25
В 2005 году началось строительство домов серии П-44ТМ/25.
Основным отличием от предыдущих серий (П-44Т и П-44ТМ) является увеличение ширины шага (с 3.с 6 по 4.2). Это привело к увеличению площади квартир, кроме того, в 3-комнатных квартирах появился гостевой санузел. Все помещения в домах серии П-44ТМ/25 изолированные. Этажность от 23 до 25 этажей, первые этажи могут быть как жилыми, так и нежилыми.
Как выбрать планировку 3-х комнатной квартиры? Чем отличается организация пространства в новостройках и панельных домах? Какой стиль выбрать? Далее в статье все подробно.
Какие вопросы нужно предусмотреть. Детализация помещения
Перед началом ремонта важно правильно распланировать все детали, продумать, какие преобразования будут в квартире, где разместить предметы интерьера и мебель. Но, что еще важнее, нужно постараться, чтобы всем членам семьи было комфортно и уютно.
Критерии выбора
Каждый человек индивидуален, любая семья уникальна. Поэтому планировка и дизайн должны быть уникальными.
Это не значит, что нужно приобретать суперэксклюзивную мебель и декор. Важно организовать жилое пространство так, чтобы было приятно приходить домой, интерьер не раздражал, хотелось принимать гостей, каждая вещь стояла на своем месте и выполняла нужные функции.
Оглянитесь вокруг и подумайте, что бы вы хотели изменить в своем доме, привнести в него, чтобы в первую очередь изменить качество жизни. Ну а теперь перейдем к конкретизации:
1 Решайте сами, насколько рациональным станет свободное пространство, модное в последнее время.Ниже приведены плюсы и минусы этого тренда.
2 Вы планируете увеличить свою семью. Это не только рождение ребенка, переезд родителей или родственников, но и появление собаки или кошки, рыбки или шиншиллы. Возможно, вы хотите заняться шитьем, создать сайт или организовать мини-сад. Все это требует правильного зонирования.
3 Какие цвета нравятся семье. Это не абстрактное понятие. Цвет может нравиться (фрагментарно). Но готовы ли вы покрасить спальню в темно-синий цвет и добавить позолоченную штукатурку, чтобы превратить комнату отдыха в спальню мадам Помпадур?
4 Хозяйка любит экспериментировать на кухне, готовить и придумывать интересные блюда.
Сколько времени это занимает? Как разместить рабочие столы, но при этом избежать распространения запахов по квартире?
И самое главное, какие финансы вы планируете потратить на изменение своей жизни.
Подумайте об этом всей семьей, прежде чем приступать к кардинальным переменам, и вам не придется жалеть, что модные обои с принтом в гостиной раздражают глаза и вы думаете об этом, а не о развитии сюжета занимательного фильм.
Будьте очень осторожны при сочетании элементов классического стиля и авангардного модерна.
Варианты компоновки
Если вы все еще в поиске удачной планировки, то наша подборка вариантов вас заинтересует.
Планировка квартиры 60 кв.м в панельном доме
Если площадь 80 кв.м.
Делаем развал правильно в сталинке
Планировка в хрущевке
Методы проектирования
Владельцам квартир в новостройках с большой площадью и отсутствием перегородок проще реализовать любые фантазии.
Однако принципы, описанные ниже, применимы к любому местоположению. Дизайнеры не могут физически изменять размеры комнат. Поэтому они используют некоторые приемы, способные творить чудеса.
Прежде всего это цвет:
1 Для приверженцев египетского стиля обязательно нужно ввести в интерьер насыщенный синий цвет. Если вы хотите заснуть без снотворного, закажите в спальню синие натяжные потолки с точечной подсветкой.
2 Зеленый в чистом виде и во всех его интерпретациях помогает расслабиться.Если вам нужно создать респектабельный интерьер с историческим оттенком, используйте серо-зеленые оттенки. Дворцовое очарование гарантировано.
3 Белый – хороший фон для антикварной, темной и эксклюзивной яркой мебели (тренд последнего сезона).
4 Теплые тона (красный, желтый) уместны в комнатах, выходящих на северо-запад, холодные тона: синий, фиолетовый, зеленый – в комнатах, выходящих на юг.
Как поднять потолок
Казалось бы, нельзя двигаться к соседям сверху или снизу.
Однако на протяжении всей истории архитекторы использовали для этого простые приемы. Декор должен иметь вертикальное направление. Подчеркну: это не обязательно должны быть полосы, применимы арабески и тому подобное.
Вертикальными линиями можно «поднять» потолок
Отличный вариант: многоуровневые потолки, у которых центральная часть самая высокая и имеет восходящую подсветку. Тренд последних лет – натяжные потолки. С их помощью достигается идеально ровная поверхность. Для тех, кто хочет увеличить высоту – глянцевые полотна.Для создания комфорта – матовые, с имитацией текстиля.
Расширение стен
Арочные проходы дают эффект расширения пространства. В небольших помещениях используйте диагональную укладку плитки, ламината, паркетной доски, теряются реальные размеры помещения.
В узких коридорах достаточно покрасить фронтонные стены или подобрать обои на два тона темнее боковых и они «разъедутся» на глазах. Аналогичное ощущение дает декорирование пилястрами, вертикальными стержнями, длинными картинами, светильниками, расставленными на одинаковом расстоянии.
Пилястры — роскошная индивидуальность
Использовать колонны, пилоны, пилястры с капителями, оформляя углы помещений более темным декором: росписью, обоями, натуральным или декоративным камнем.
Модные направления дизайна (стили), тренды
Мрамор в разных интерпретациях используется для отделки полов и стен. Однако это не обязательно должна быть тривиальная плитка. Лучше использовать плиты, в том числе имитирующие этот материал. Дополнением становятся покрывала, декоративные подушки с мраморным рисунком.Материалы с таким рисунком используют для отделки столешниц кухонных зон, журнальных столиков.
Для оформления ведущие дизайнеры рекомендуют выбирать цвета и оттенки: коричнево-красный, лиловый, синий (цвет неба), терракотовый, голубой, горчичный, бежевый, красный (фрагментарный). Как видите, ассортимент довольно обширный, он может удовлетворить любые предпочтения. Но все же королем цвета в этом году был назван Greenery – цвет молодой зелени, олицетворяющий слияние с природой, энергию.
Greenery — трендовый цвет этого года
Этой тенденции вторят коллекции керамической плитки.Цветовая гамма однородная, с естественным рисунком: различные оттенки охры, меди сочетаются с более темными оттенками. Возврат к природе требует много живых растений. При желании помещение можно превратить в оранжерею.
Беспроигрышный вариант – все натуральные цвета и оттенки. Назад к природе — девиз дизайнеров.
Как добавить уюта в большие комнаты
Часто владельцы квартир чувствуют себя некомфортно. Чтобы этого не допустить, организуйте мини-зоны: релаксации, просмотра телевизора, столовой.Этот прием снимает психологическое напряжение с пространства, лишенного стен. Каждому человеку нужны места, условно разделенные по функциям, чтобы не ощущать пустоты.
Для отдыха сгруппированы диваны, журнальный столик и кресла + ковер. Обеденная группа включает горку, стол со стульями, ее можно подчеркнуть другим напольным покрытием (плитка).
Дополнительные помещения
В санузлах рационально установить водонагреватель.
Его легко спрятать за декоративной съемной панелью.Если вы не приверженец многочасовых ванн и в семье нет маленьких детей, замените ванну на душевую кабину или гидробокс. Установите стиральную машину на освободившееся место.
Многие из нас видели в жизни самые разнообразные планировки квартир. Ведь в разных типах многоэтажных домов можно встретить квартиры самой разной планировки, которые могут отличаться не только характером расположения комнат или размерами жилой площади, но и своим типом.Тем не менее, все они поддаются достаточно точной классификации, особенности которой мы с вами сейчас и рассмотрим.
Типы планировок квартир
Среди основных типов планировок квартир можно выделить следующие:
- Коммунальная квартира
- Полугостиная
- Общежитие
- Небольшая семья
- Студия
- Однокомнатная квартира
- Двухкомнатная квартира
- Трехкомнатная квартира
Данная классификация включает практически все виды планировок квартир, существующие на сегодняшний день.
Теперь давайте вместе с вами рассмотрим, что из себя представляет каждый вид планировки квартиры, и какие варианты расположения он может иметь. Также будет интересно узнать об особенностях работы над проектированием домов в разные периоды.
Коммунальная квартира
Коммунальная квартира (или «коммуналка», как ее называют в народе) – это одна комната, расположенная в изолированном жилом помещении большой площади. Каждая отдельная семья или один человек занимает одну жилую комнату.
Все остальные помещения общего пользования — прихожая и коридор, душевая или ванная, а также туалет и кухня.
Коммунальные квартиры получили распространение после 1917 года, когда к власти пришли большевики. Они отняли часть жилплощади, принадлежавшей состоятельным горожанам, и заселили в их квартиры семьи коммунистов, военных и рабочих.
Полугостиная
За непонятным и несколько экзотическим названием «полупансион» скрывается отдельная квартира минимальной площади – от 20 до 27 квадратных метров общей площади.
Отличительной особенностью квартир — полужилыми можно считать кухню — прихожую.Это означает, что почти сразу при входе есть небольшая кухонька (обычно оборудованная электрической духовкой с двумя конфорками). А сразу за порогом можно найти стиральную машину или холодильник, стоящие под вешалкой для одежды – на минимальной площади этих квартир вся мебель и бытовая техника должны быть размещены очень компактно.
Конечно, большой семье в такой квартире разместиться сложно, но для одного-двух человек вполне подойдет.
Квартира — полупансион
Общежитие
Общежитие или квартира гостиничного типа – это отдельная небольшая однокомнатная квартира с небольшой кухней, которая часто располагается в нише. Кроме того, в общую зону гостиной входит и миниатюрная прихожая. Во всей квартире только одно окно.
Квартиры — общежития тоже не могут похвастаться большой площадью
В Советском Союзе квартиры гостиничного типа массово строились для заселения рабочих на заводах в 60-х годах XX века.
В те времена иметь собственную квартиру, пусть даже самую маленькую, было большой удачей.
Маленькая семья
Малосемейный – также относится к малогабаритным квартирам и характеризуется небольшой площадью. Так, размер гостиной может начинаться от 9 кв.
По сути, малодетные семьи представляют собой тип жилья, занимающий промежуточное положение между комнатами в общежитиях и отдельными квартирами.
Малосемейная квартира включает в себя гостиную стандартной площади (от 16 до 20 кв.м) или уменьшенной площади (9 — 12 кв.м), отдельную кухню с окном, совмещенный санузел с ванной (обычно сидячий) и миниатюрный коридор.
Небольшие семьи могут быть размещены в многоквартирных домах высотой 5, 9 или 12 этажей. На каждом этаже большое количество квартир (от 10 до 20). Доступ к ним осуществляется через длинный общий коридор.
Интерьер однокомнатной квартиры — малосемейный
Студия
Студия — малогабаритная однокомнатная квартира современного типа.
Особенности его планировки в том, что кухня и гостиная представляют собой единое целое.
Однокомнатная квартира — студия
Этот тип планировки имеет как свои преимущества (создается ощущение большего пространства), так и недостатки — необходим продуманный дизайн, чтобы все элементы дизайна смотрелись гармонично.
Дизайн квартиры — студии
Однокомнатная квартира
Полноценная квартира-студия – это отдельная квартира с одной жилой комнатой разной площади. Санузел часто тоже совмещен – правда, ванна стандартного размера, а туалет располагается на некотором расстоянии от нее.
При этом имеется отдельный коридор разной площади и отдельное кухонное помещение (обычно относительно небольшого размера). А в однокомнатной квартире дополнительно могут быть встроенные кладовки для хранения различных вещей и настенные ниши.
По типу постройки многоэтажных домов однокомнатные квартиры подразделяются на:
- «Хрущевка» — названа в честь одного из руководителей СССР — Генерального секретаря Н.
С. Хрущева, при котором массово строились дома с малогабаритными квартирами, низкими потолками и очень миниатюрными кухнями. Их площадь достигала 5 – 6 квадратных метров, что явно недостаточно для размещения семьи даже из двух-трех человек. Но люди были рады получить даже такую отдельную квартиру.
- «Брежневки» — были названы в честь следующего генсека Леонида Брежнева. В то время началось строительство многоэтажных домов, в которых были квартиры с высокими потолками и большей площадью помещений. Кроме того, планировка квартир совершенствуется, а площадь кухни увеличивается до 7 – 9 квадратных метров.
Дизайн однокомнатной квартиры — брежневка
- Современные однокомнатные квартиры отличаются повышенной планировочной комфортностью и еще большей площадью кухни, которая никогда не бывает меньше 8 — 9 квадратных метров.При этом возможен не только линейный тип расположения комнат, но и «распашонка» (окно в гостиной выходит на одну сторону, а на кухне — на другую).

Двухкомнатная квартира
Двухкомнатная квартира – это полноценная отдельная квартира, в которой есть две комнаты разной площади, коридор, кухня и санузел, часто раздельные.
В зависимости от конструктивных особенностей многоэтажного дома планировка двухкомнатных квартир может различаться на три основных вида:
- Линейная планировка — предполагает расположение комнат в квартире в одну линию.Таким образом, все окна выходят на одну сторону дома.
- Планировка «тельняшка» — предполагает расположение комнат по разным сторонам. Соответственно, окна выходят на две стороны дома. Это очень удобно, потому что одна сторона может быть солнечной, а другая теневой.
Пример планировки «тельняшка»
- Торцевая планировка — учитывает наличие окна в торце здания. Таким образом, двухкомнатная квартира имеет трехсторонний вид.
Трехкомнатная квартира
Трехкомнатная квартира – это отдельная полноценная квартира различных типов планировок, которая состоит из трех жилых комнат, прихожей, коридора, санузла (обычно туалет и ванная раздельные) и кухни.
Кроме того, в трехкомнатных квартирах должен быть хотя бы один балкон, а то и балкон и лоджия.
Трехкомнатные квартиры отличаются большим разнообразием планировок и расположения комнат относительно сторон дома. Конечно, трехкомнатные квартиры более просторны, а потому более удобны для большой семьи.
В зависимости от периода постройки дома, расположенные в нем трехкомнатные квартиры можно разделить на следующие виды:
- «Сталинцы» — трехкомнатные квартиры общей площадью 57 — 85 квадратных метров, просторные и уютные, с высокими потолками и удобным расположением изолированных комнат.Площадь кухни может быть до 15 кв. Нетрудно догадаться, что они были построены во времена И.В. Сталина (в 30-е — 50-е годы ХХ века).
- «Хрущевка» — трехкомнатных квартир общей площадью 48 — 56 кв. Квартиры такой планировки довольно маленькие, с проходными или смежными комнатами и низкими потолками. К тому же площадь кухни очень маленькая – всего 6 квадратных метров.
Дома с подобной планировкой квартир стали строиться во времена генсека Н.С. Хрущева (с 1956 г.) — и их строительство продолжалось до 1985 г. При этом характер зданий несколько изменился. - «Брежневки» — это квартиры нескольких типов, чаще в многоэтажках, построенных в период его пребывания на посту Генерального секретаря СССР Леонида Брежнева. Общая площадь трехкомнатной квартиры данного типа составляет 48 – 56 квадратных метров, но при этом реализованы варианты улучшенной планировки. Кроме того, важным преимуществом такого типа квартир являются изолированные друг от друга комнаты.Иногда планировка такова, что очень легко сделать комнаты изолированными.
- «Спортзал» — Квартиры в чешском стиле имеют общую площадь 68 — 75 кв. Комнаты изолированы друг от друга, санузел раздельный, площадь кухни 8 — 12 кв. В такой квартире, как правило, есть балкон и лоджия.
Трехкомнатная планировка — «Чешка»
Квартиры свободной планировки
Свободная планировка квартир предполагает наличие большого количества помещений (более трех жилых комнат) и характеризуется, соответственно, увеличенной площадью.
Такие квартиры строились в разные периоды, поэтому среди них можно найти «сталинки» и «брежневки», «чешки» и современные квартиры в монолитных домах.
Однако в технических документах на квартиру отсутствует определение «свободная планировка», поэтому это название можно услышать исключительно от продавцов недвижимости. Однако для квартиры открытой планировки они представляют большой интерес, поскольку дают возможность проявить свою фантазию и воплотить самые смелые творческие идеи.
Современный жилой фонд насчитывает огромное количество жилья. Достаточно популярной жилой недвижимостью является 3-х комнатная квартира. Планировка этого помещения может быть разной и зависит от времени постройки дома и серии здания. Каждая квартира имеет свои особенности, что одним нравится, а другим нет, и тогда вторые стараются сделать перепланировку по своему вкусу.
Типовая планировка «трешки»
Типовая 3-х комнатная квартира имеет несколько вариантов размещения жилых помещений.
Планировка здесь может быть как удобной, так и причинять неудобство жильцам. Например, две комнаты маленькие, а одна большая. В некоторых жилищах есть две смежные комнаты и одна изолированная, но небольшого размера. Иногда номера расположены по обеим сторонам здания. Такая планировка называется «самолет» и часто встречается в московских домах. Лучшими считаются 3-х комнатные квартиры (ряды планировок характеризуют расположение комнат, высота здания, размеры помещений и многое другое), в которых все комнаты изолированы.
Обычно в стандартной трехкомнатной квартире есть как минимум одна кладовка. Большинство дизайнеров рекомендуют делать из него гардеробную. В небольших помещениях кладовая может решить проблему нехватки места.
Обычно в квартире из трех комнат одну определяют под гостиную, вторую – под спальню, а третью отводят под детскую, если в семье есть дети.
Практически все «трешки» имеют раздельный санузел, причем многие из них имеют угловое расположение.Они расположены как можно дальше от лестницы и лифта.
Стандартные размеры такой квартиры составляют от 56 до 80 кв.м. Самый большой номер — от 15 кв.м. м, обычно зал или гостиная; спальня – от 12 кв.м, а на детскую приходится 10 кв.м. Размер кухни около 7-9 квадратных метров. м.
Трехкомнатная квартира дает вам определенную свободу в использовании жилплощади. Места хватит всем – и взрослым, и детям.
Типы планировок квартир
3-х комнатная квартира может иметь самое разное расположение помещений. Здесь есть несколько видов планировки:
- «Сталинка». Такие дома строились в самом начале 50-х годов. Это было лучшее советское жилье. Высота потолков достигает трех метров. Стены массивные, облицованы красным кирпичом. Комнаты изолированные и удобно расположены. Отдельная ванная комната. Они делятся на номенклатурные и рядовые. Первые дома предназначались для избранных и имели комнаты для прислуги, арки и просторный зал.
- Хрущевка. Построены между 1957 и 1962 годами. Дома этого типа отличаются неудачным расположением комнат, тонкими панельными стенами, совмещенным санузлом и низкими потолками.
Маленькая кухня – 3-4 кв.м. - «Брежневка». Квартира среднего размера и имеет отдельную ванную комнату. Усовершенствованный вариант «хрущевки». Есть встроенные шкафы, антресоли. Шкаф для хранения продуктов находится под окном на кухне. Размер кухни 7-9 кв.м.
- Современное жилье.Квартиры увеличенной площади имеют удобную планировку. Один или два санузла. Номера могут располагаться в «вагончике» или выходить на обе стороны здания. Кухня в современных квартирах большая – от 7 кв.м.
- Элитный корпус. Здесь количество санузлов соответствует количеству спален в доме. Комнаты обустроены в соответствии с пожеланиями заказчика. Есть гардеробные и кухни-студии. Такая квартира спроектирована с учетом всех потребностей человека и является максимально комфортной.
Особенности планировки трехкомнатного жилья
В 3-х комнатной квартире могут быть свои особенности расположения жилых помещений. Планировка таких помещений может быть закрытой, открытой, частично закрытой, смежной и смешанной.
При закрытой планировке все комнаты изолированные. Каждый имеет выход в общий коридор. Самая большая комната — гостиная. Есть широкий зал.
Свободная планировка встречается в квартирах-студиях. Одно большое пространство разделено на разные зоны, каждая из которых имеет свой дизайн и индивидуальный тип освещения.
Частично закрытая компоновка. Одна часть помещения открытая — гостевая, а другая имеет изолированные комнаты. Помещения разделены небольшим холлом.
При смежном типе расположения помещений только одна комната выходит в общий коридор, остальные сообщаются с ним проходом или дверью. При смешанной планировке есть как изолированные, так и смежные комнаты.
Критерии оценки планировки при выборе жилья
Существенное влияние на ее выбор оказывает планировка 3-х комнатной квартиры (размеры типовых проектов можно посмотреть на фото ниже).В первую очередь при выборе жилплощади люди ориентируются на общую площадь, параметры и форму кухни, площадь коридоров.
Учитывается количество окон. Некоторым арендаторам нравится иметь окна по обе стороны здания.
Важным критерием является наличие лоджий и балконов, а также их количество. Учитывают проходные помещения, несущие стены, толщину панелей, высоту потолков. Жильцы смотрят на удаленность квартиры от лифта и наличие тех или иных коммуникаций.При покупке жилья следует обращать внимание на соотношение общей площади помещений к жилой площади, развитость инфраструктуры и ряд планировок застройки.
Серия планировок
Серия жилых домов – это здания, построенные по единому типовому проекту. В зависимости от материалов, используемых при возведении несущих конструкций, многоэтажные дома подразделяются на:
- блочные;
- железобетон;
- кирпич.
Здания железобетонные, в свою очередь, могут быть монолитными, панельными или сборно-монолитными.
Жилой фонд начал массово строиться с 1950 г. Это были каркасно-панельные дома, бескаркасные дома, «сталинки» (планировочные серии II — 01, 02, 03, 04, 05, 06, 08).
Одной из самых известных серий 50-60-х годов является Мм 1-3, а также серии 1-440 и 1-149. Это пятиэтажки с нерациональным расположением комнат и маленьких кухонь. Могут быть проходные комнаты, в некоторых домах есть совмещенный санузел.
С 60-х годов возводятся «хрущевки». Это блочные (серия 1-510), панельные (К-6) и кирпичные (серии 1-511 и 1-447) пятиэтажки. Ряд домов К-7 облицован белой черепицей. Он имел выступающую раму по углам и один вход.
С 1970 года началось активное строительство 9-этажных многосекционных домов: панельных (серии II-49, II-57) и кирпичных (II-29, II-32). Высота потолков в таких помещениях составляла 2,64 м. Внутренние перегородки не были несущими, поэтому в таких квартирах легко сделать перепланировку.
В 1980-е годы были введены в эксплуатацию дома серий П-44, П-3, П-43, П-4. Некоторые здания были надстроены до 22 этажей. Квартиры в них имеют удобную планировку и раздельный санузел, кухню средних размеров.
В настоящее время совершенствуются устаревшие серии домов (П-44К, ПД-4, П-44Т).
Площадь квартир увеличивается. Комнаты изолированные. При строительстве используются как блоки, так и панели. Есть серии, в которых фасад дома обрамлен стеклом («Копэ-м-парус»).Также вводятся в эксплуатацию монолитные дома («Колос», «Юникон» и серии III-17).
Московская планировка
Многим жильцам понравились московские планировки 3-комнатных квартир. В основном это девятиэтажки, в которых есть лифт и мусоропровод. Комнаты изолированные, хотя есть варианты и с проходными комнатами. Санузел в таких квартирах раздельный. Есть балкон и лоджия. Помещения расположены как с двух сторон жилого дома (планировка «самолет»), так и с одной стороны («вагончик»).
Технология строительства и архитектура зданий московской планировки аналогичны хрущевским. Как правило, такие дома расположены в спальных районах. Рядом с ними есть детский сад, школа, магазины и другая развитая инфраструктура.
Планировка 3-х комнатной квартиры: «хрущевка»
Зданиям, построенным при Хрущеве, более 50 лет.
Некоторые из них были снесены, но большая часть прошла капитальный ремонт, в результате чего срок их службы увеличился.Это жилье часто подлежит перепланировке, так как имеет низкие потолки, неудобное расположение комнат, маленькие комнаты и маленькую кухню. Эти апартаменты имеют общую ванную комнату и узкие коридоры. Высота потолков – до 2,5 м. Есть смежные комнаты. Имеет тонкие стены и плохую тепло- и звукоизоляцию «хрущевка» (3-х комнатная квартира). Планировка этого жилища оборудована ненесущими внутренними перегородками, что позволяет при желании изменить внутреннее расположение комнат.
Общая площадь такого жилья 55-58 кв.м. На гостиную приходится около 14 квадратных метров. м, спальня – от 8 кв.м, детская – от 6 кв.м, а доля кухни – 4-4,5 кв.м. Оборудован встроенными шкафами и антресолями «хрущевка» (3-х комнатная квартира). Планировка позволяет убрать из интерьера эти предметы мебели, что многие и делают, за счет чего помещение выигрывает в размерах.
Планировка 3-х комнатной квартиры П-3
Здания серии П-3 признаны лучшими по эксплуатации и планировке.
«Трешки» этой серии начали строиться в 80-х годах. Со временем эта серия совершенствовалась, и появились проекты П-3М, П-3МК Флагман, П-3/16.
Дома П-3 комплектуются трехслойными навесными панелями, отличающимися хорошей тепло- и звукоизоляцией. Трехкомнатные квартиры отличаются удобным расположением помещений. Есть балконы, просторная кухня и изолированные комнаты. Имеется система дымоудаления. С 2002 года в таких квартирах устанавливаются стеклопакеты.Дома сдаются с отделкой. Практически все внутренние перегородки являются несущими.
Высота потолков в квартирах 2,64м. Общая площадь 3-х комнатного жилья 74-86 кв.м, кухня — 10 кв.м.
«Трешка» серии П-44
Здания этой серии строятся по всей России. Улучшена планировка 3-х комнатной квартиры П-44. Площадь такой квартиры 73 кв.м, кухня 8-12 кв.м. Просторные коридоры, прихожая, большой санузел, вентиляция на кухне и в санузле.Ванна и туалет раздельные. Высота потолков достигает 2,64 м.
Каждый этаж оборудован мусоропроводом с загруженными клапанами.
Есть два лифта. Один для перевозки пассажиров, другой для грузов. Холл здания просторный, есть место для консьержа. Фасады отделаны разноцветной облицовочной плиткой. Дома имеют длительный срок службы (более 100 лет).
Планировка современной «трешки»
На данный момент в жилом фонде имеется огромный ассортимент квартир самой разной планировки.Современная «трешка» имеет просторную лоджию, два санузла, две спальни, эркер и большую кухню (от 10 кв.м.). В некоторых квартирах есть гардеробная. Распространено жилье со свободной зоной.
Планировка 3-х комнатной квартиры общей площадью 120-130 кв.м позволяет воплотить в реальность все творческие идеи. Санузлы здесь расположены рядом с самыми маленькими комнатами, где уместнее всего разместить спальню. В такой квартире члены семьи не будут мешать друг другу, для каждого найдется уголок для уединения.
Элитное жилье
Элитные трехкомнатные квартиры могут иметь площадь от 100 до 200 кв.м и более. В такой квартире минимум два санузла.
Дизайнерское оформление комнат. Высота потолков — 3 м. Площадь кухни — от 15 кв.м. Некоторые квартиры имеют второй этаж. Часть помещения имеет свободную планировку.
Элитное жилье всегда отличается повышенным комфортом. В этих домах есть подземные гаражи, автостоянки и мусоропровод.Здания охраняются, в подъезде дежурит консьерж. Рядом развитая инфраструктура. Эти здания расположены в центральных и живописных районах города.
Преимущества планировки современной трехкомнатной квартиры
Многочисленное жилищное строительство повлияло на качество возводимых помещений. Сейчас трудно найти проходные помещения в новостройках. Угловые комнаты в трехкомнатной квартире хорошо утеплены, поэтому в них не сыро и тепло.Жители чувствуют себя в них комфортно. Общая площадь «трешки», санузел и кухня увеличились в размерах. В доме есть лоджия или балкон, кладовая. Внутренние перекрытия зачастую не являются несущими, и при желании перепланировать помещение не составит труда.
Размеры потолков в современных «трешках» увеличились до 3 м. Есть свободная зона, которую легко зонировать, тем самым увеличивая функциональность помещения.
Современные трехкомнатные квартиры удобны и рациональны.Подходит практически для любой семьи и редко нуждается в перепланировке.
Дизайн квартиры 91 серия. Типовые планировки домов и квартир: Ленинградка
Квартира общей площадью 35 кв.м., жилая 18,3 кв.м., кухня 9 кв.м.
Двухкомнатная квартира на Плеханова 10
Общая площадь квартиры 44 кв.м, жилая 29 кв.м, кухня 6 кв.м.В квартире сделан ремонт
Двухкомнатная квартира по улице Юбилейная
Площадь квартиры 46,4 кв.м, жилая 32,5 (зал 17 и спальня 15,5) кв.м. Площадь кухни 5,7 квадратных метра, высота потолков стандартная – 2,52 метра.
Двухкомнатная квартира на улице Вермишева
Площадь квартиры 43,4 кв.м, зал 17,2, спальня 12,8 кв.
м, кухня 5.4 квадратных метра. Высота потолков стандартная 2,5 метра.
Двухкомнатная квартира улучшенной планировки
Общая площадь 50 кв.м, изолированные комнаты 18 кв.м и 12 кв.м, кухня 7 кв.м. Квартира чистая, аккуратная и светлая. Пластиковые окна, новые межкомнатные двери
Двухкомнатная квартира по улице Студеновской
Хорошее состояние, чистая, аккуратная, новая входная дверь, металлопластиковые окна, балкон застеклен, санузел раздельный, кафель.
Квартира на Сиреневом проезде
Дом, в котором предлагаем Вашему вниманию квартиру, находится в Сиреневом проезде, дом №6 — этот дом расположен в середине микрорайона, на равном удалении от всех инфраструктурных благ.
Нестандартная квартира в двенадцатиэтажном кирпичном доме
Нестандартная квартира в двенадцатиэтажном кирпичном доме на 21 микрорайоне по проспекту Победы, дом 116. Дом 1998 года постройки, расположен по переулку
Четырехкомнатная квартира в двенадцатиэтажном кирпичном доме
Квартира расположена на втором этаже, общая площадь 94,6 кв.
м., жилая площадь комнаты 50 кв.м.
Четырехкомнатная квартира по улице Льва Толстого
На этой замечательной улице продается четырехкомнатная квартира на девятом этаже девятиэтажного кирпичного дома общей площадью 70 кв.м.
Трехкомнатная квартира на Р.
улица ИбарруриКвартира 91 серии, дом 1980 года постройки, расположена на 4 этаже 5 этажного панельного дома
Трехкомнатная квартира в Сиреневом проезде
Продается 3-комнатная квартира на Сиреневом проезде, д. 6, дом 1984 года постройки, 91 серия.
Однокомнатная квартира по улице Филипченко
Квартира расположена на 6 этаже 9-ти этажного панельного дома по ул. Филипченко, дом.8/2, 35/18.5/9, комната 18 кв.м., сан.узел.узел отдельный
Однокомнатная квартира в 15 микрорайоне
Квартира расположена на пятом этаже пятиэтажного панельного дома (однокомнатный Москвич), площадь квартиры 30,1 кв.
м.
2-комнатная квартира-студия индивидуальной планировки
Продается 2-комнатная квартира-студия индивидуальной планировки, в кирпичном доме. Квартира расположена на девятом этаже десятиэтажного кирпичного дома.
Две комнаты в четырехкомнатной квартире на Невском
Площадь квартиры 81.8 кв.м.3 кв.м., жилая 61 кв.м., продаем 2 комнаты площадью 17,1 и 12,8 кв.м.
Двухкомнатная квартира в поселке Сухоборье
В квартире никто не прописан, чистая продажа, возможна ипотека, возможен торг. Транспортное сообщение с Липецком — автобус 2 раза в день.
Двухкомнатная квартира на улице Бородинской
Квартира общей площадью 47,5 кв.м, 2 изолированные комнаты 16 кв.м и 13 кв.м, кухня 8 кв.м.
Двухкомнатная квартира улучшенной планировки на Соколе
Квартира расположена на 1 этаже 9-ти этажного кирпичного дома. Квартира общей площадью 47 кв.
м., 2 изолированные комнаты 16 кв.м. и 13 кв.м., кухня 8 кв.м.
Двухкомнатная квартира в престижном районе Сокольского района
Высокий 1 этаж кирпичного дома 2006 года постройки. Общая площадь 52 кв.м., 2 изолированные комнаты 16,4 кв.м., 14.5 кв.м.
Пятикомнатная квартира улучшенной планировки на Соколе
Продается 5-комнатная квартира улучшенной планировки на Соколе! 3 этаж 5-ти этажного панельного дома, общая площадь 81 кв.м, жилая 55 кв.м, кухня 8 кв.м, жилые комнаты 17, 10, 12, 8, 8 кв.м. соответственно.
Сегодня в ходе глобального развития городов существует достаточно большой выбор различных типов жилья с разнообразными типами планировок.
Здесь можно найти и большие квартиры с просторными балконами, и квартиры с двумя раздельными санузлами, и даже жилье премиум-класса, которое представлено двухэтажными экземплярами.
Благодаря такому широкому выбору, каждый может выбрать нужный ему тип жилья.
Самым популярным видом обустройства жилья по-прежнему остается планировка 3-х комнатной квартиры, рассчитанная на большую семью.
Лучшие квартиры представлены «трешками» свободной планировки. Это самые удобные и стильные жилые метры района.
Если все пространство будет правильно спланировано, то на 130 м² смогут комфортно уживаться люди разных поколений с совершенно разными вкусами и характерами.Это улучшенная планировка 3-комнатных квартир.
Планировка 3-х комнатных квартир в новостройках
Как правило, сегодня в новых домах санузел располагается рядом с небольшой комнатой. Именно поэтому целесообразно сделать из этой небольшой комнаты спальню.
Главное решить, какой элемент в спальне станет акцентом. Это может быть как шкаф, так и кровать.
Однако если шкаф можно разместить в гостиной, то кровать непременно станет центром комнаты.
Все жилища в новостройках имеют достаточно большую площадь, поэтому планировка 3-х комнатной квартиры при немаленьких габаритах – это, в первую очередь, свободная организация пространства.
В спальнях больших квартир можно разместить не только необходимую кровать и систему хранения, но и множество предметов функциональной мебели. Здесь вы можете создавать и воплощать в жизнь все дизайнерские идеи.
Тем, кому не нравится все стандартное и привычное, стоит обратить внимание на обустройство спальни с круглой кроватью.
Эта кровать выглядит очень стильно и модно. Дополнить необычный интерьер можно необычной подсветкой или овальной конструкцией из гипсокартона на потолке.
Разработка дизайн-проекта 3-х комнатной квартиры начинается с пожелания хозяев. Планировка 3-комнатной квартиры и ее дизайн выполнены в светлых тонах с некоторыми цветовыми акцентами.
В этом интерьере очень спокойная и уютная атмосфера. Детские комнаты должны быть оборудованы с учетом возрастных потребностей каждого ребенка.
Преимущества современной планировки квартир
Наиболее привычной планировкой 3-х комнатной квартиры в панельном доме был тип проходного помещения.
Здесь самая большая комната находится возле кладовой, через которую можно попасть в спальню.
Чтобы расширить пространство, многие снесли кладовую и построили совершенно новую перегородку. Получилось 2 комнаты и большой темный коридор.
Современные «трешки» стали намного удобнее и комфортнее, ведь в них уже есть отдельные санузлы и жилые комнаты, увеличилась площадь кухонного пространства и санузла.Почти в каждой квартире сейчас есть балкон или лоджия.
Обычная 3-х комнатная хрущевка, планировку которой также легко осуществить, в результате чего получается комфортная квартира для проживания. Здесь целесообразно зонировать пространство, используя цвет и фактуру материалов.
Сегодня планировка квартир в новых домах стала удобной. Привычные потолки в 2,5 метра выросли, теперь их высота составляет 3 метра.
Также можно найти экземпляры с индивидуальной планировкой или квартиры-студии, не имеющие внутренних стен, что дает возможность создавать неповторимые индивидуальные интерьеры.
Если найти подходящее жилье не удалось, можно сделать перепланировку самостоятельно, соблюдая простые хитрости и принципы.
В первую очередь обращают внимание на функциональное назначение помещения. Так из обычной спальни можно сделать спальню-гостиную или рабочую зону. Затем с помощью приемов зонирования помещение разбивается на секции и обозначается.
Любое готовое жилое помещение не всегда является пригодным для жизни конечным результатом.
Поэтому, благодаря фото-планировке 3-х комнатной квартиры и советам профессиональных дизайнеров, каждый может создать дом своей мечты.
Фото лучших идей планировки трехкомнатной квартиры
Большинство жилья в многоквартирных домах Москвы и Московской области — это квартиры в серийных (типовых) домах.
Серия домов – это группа жилых домов с одинаковыми планировками квартир, инженерными конструкциями и используемыми строительными материалами. Планировки в таких домах называются типовыми. Вы можете комбинировать разные серии домов по материалу стен или на временной основе.
Применяются три основных типа строительных материалов:
- кирпичные дома — типовые серии, наружные стены которых построены из кирпича.
- Дома панельные — стандартная серия, построенная из сборных железобетонных панелей.
- блочные дома — типовые серии, наружные стены которых сложены из бетонных блоков.
По временному признаку можно выделить четыре основных периода строительства:
- Сталинская серия — типовая серия домов, спроектированных в 1950-х годах. Дома в основном кирпичные или блочные. Отличительные особенности- высокие потолки, просторные комнаты, большие коридоры и кухни.
- Хрущевская серия — типовая серия домов, спроектированных в период с 1956 по 1964 год.
Дома в основном панельные, иногда кирпичные. Отличительные особенности – маленькие кухни, отсутствие лифтов, общие санузлы, плохая тепло- и звукоизоляция. - Брежневская серия — типовая серия домов, спроектированных в СССР с 1965 по конец 1980-х годов. Есть как кирпичные, так и панельные и блочные проекты. Этажность постепенно увеличивалась сначала до 9, а затем до 17 этажей. Более поздние проекты отличаются большим разнообразием дизайна и удачными типовыми планировками. Самые удачные брежневские серии были модифицированы и строятся сегодня.
- Серия «Модерн» — типовая серия домов, спроектированных с начала 1990-х гг. В отличие от предыдущих попыток придать типовым домам индивидуальные черты, появляются дома переменной этажности, комбинированные дома, планировки квартир становятся более просторными, качественно растет внешнее и внутреннее убранство зданий.
На сайте представлено большинство типовых серий домов, построенных с 1950-х гг. Те. 90% всех вариантов типовых квартир и домов представлены на рынке Москвы и Московской области.
Квартиры в Липецке сталинской планировки бывают двух видов:
- Стандартные квартиры Сталинская планировка . 1,2,3,4 комнатные квартиры в 3-5 этажных домах (ул. Парковая, ул. Советская). Обычно если сталинка 5-этажная, то первый этаж изначально проектировался с высокими потолками (до 3,77 м.) нежилыми помещениями. Архитектура этих домов утилитарна: никаких архитектурных «излишеств», оштукатуренный силикатный кирпич для наружных стен, почти ровные фасады со стандартным лепным декором.Часто над последним этажом находится технический этаж или мансарда. Перекрытия — железобетонные.
- Ранние квартиры Сталинская планировка . 1,2,3,4 — комнатные квартиры. Обычно 2-х этажные (ул. Прокатная, район НЛМК) — отличаются невысоким качеством строительства, лестницы между этажами деревянные, перекрытия между этажами из «гонта» или дерева.
Особенностью всех домов сталинской планировки являются:
- высокие потолки от 3 до 3.
77 метров - изолированные комнаты
- большая кухня (от 7,5 до 16 метров) и комнаты (до 30 метров)
- высоких прямоугольных окон.
- во всех квартирах сталинской планировки , кроме первого (опытного) с/у отдельного
- надежная и долговечная строительная конструкция
Недостаток:
- отсутствие мусоропровода
- без лифта
Общая площадь:
1 комната — 32-50 кв.м.
2 комн. — 44-65 кв.м.
3 комнаты — 59-80 кв.м.
4 комнаты — 80-100 кв.м.
Общие фото домов Сталинская планировка :
Макеты:
1 комната
2 комнаты
3 комнаты
4 комнаты
Дома с планировками квартир 91-й серии относятся к категории домов «улучшенной планировки». Такие дома есть во всех районах нашего города. За весь период строительства этих домов существенных различий ни в планировке квартир, ни в архитектуре домов не было.Внешней особенностью дома 91-й серии является 5-й угол в одной из комнат.
Когда в описании квартиры указано, что зал «с углом» — скорее всего это 91-я серия .
Особенности панельных домов данного типа:
- наличие 5-го угла в одной из комнат в 3-х и 4-х комнатной квартире
- в 9-10 этажных панельных домах
- лифт и мусоропровод, расположенный между этажами
Ориентировочная площадь квартир 91-й серии:
1 комната — 36/18/8 кв.м.
2 комнаты — 51/30/7,5 кв.м.
3 комнаты — 63/38/8 кв.м.
4 комнаты — 78/55/8 кв.м.
Макеты которые находятся в Липецке:
1 комната
2 комнаты
3 комнаты
4 комнаты
4 комнатная (на стыке 2-х домов)
Дома Ленинградской планировки (или Ленпроекта) построены в 70-х — 80-х годах ХХ века. Начало строительства домов этого типа ознаменовало переход на более комфортный и современный уровень жилья.Материал изготовления дома панель или блок. Такие дома имеют форму «кораблей» — длинных многоподъездных домов.
Девятиэтажки ленинградской планировки очень легко спутать с 91-й серией, единственное внешнее отличие – наличие лоджии с торца здания (видно на фото 1 и 3). Как правило, особенностью домов с квартирами ленинградской планировки является то, что окна (кроме угловых квартир) выходят на одну сторону. То есть все комнаты расположены с одной стороны вдоль длинного широкого коридора.Межквартирные стены несущие, что обеспечивает отличную звукоизоляцию. Межкомнатные перегородки не несущие, но за счет особенностей планировки позволяют перепланировать квартиру на свой вкус. Большой плюс квартиры ленинградской планировки – большой (по сравнению с большинством квартир улучшенной планировки) санузел. в народе этот макет назывался « ленпроект » или « Ленинградка «. В Липецке примером Ленпроекта могут служить дома № 7 и 8 по ул.9 мкр.
- 1 комнатная — 32-36 кв.м.
- 2 комн. — 45-49 кв.м.
- 3 комнаты — 60-68 кв.м.
- 4 комнаты — 78-85 кв.м.

Особенности домов Ленинградской планировки (Ленпроект):
- Площадь кухни от 8 до 10 метров.
- все квартиры (кроме угловых) имеют окна на одну сторону.
- балкон длиной 4-4,5 метра.
- отдельно
- высота потолков 2,7 метра.
- Есть лифт и мусоропровод.
- обычно расположены в центральных районах города
Общие фото домов с квартирами Ленинград планировка :
Макеты:
1 комната
2 комнаты
3 комнаты
Головным застройщиком домов 90-й серии в Липецке является Домостроительный комбинат (ДСК). Такие дома есть во всех районах нашего города. За весь период строительства этих домов существенных различий ни в планировке квартир, ни в архитектуре домов не было.Дома 90-й серии практически не встречаются в старых районах города и центре. Большая часть этих домов построена в новых районах Липецка.
Особенности домов с планировкой квартир 90-й серии:
- расположенные в 9-10 этажных домах,
- кухня площадью от 8,5 до 9 кв.
метров, - на этаже есть лифт и мусоропровод
Общая площадь:
1 комната — 35-37 кв.м.
2 комн. — 50-52 кв.м.
3 комнаты — 62-63 кв.м.
4 комнаты — 79-82 кв.м.
Общие фото домов данного типа:
Планировки квартир в домах серии 90:
1 комната
2 комнаты
3 комнаты
4 комнаты
В начале 70-х пятиэтажные «сталинские» и «хрущевские» дома были заменены 9-этажными домами серий 1-602, 1-606, 1-447С-47 (именно последний широко представлен в Липецке) Как правило, такие дома называются Брежневка .Бывают кирпичные, панельные, блочные. В них появились лифты и мусоропроводы, улучшена звукоизоляция по сравнению с «хрущевками». По своей сути брежневка — это улучшенная хрущевка или москвичка. Большим преимуществом брежневки является то, что межквартирные стены в этих домах ненесущие, лифт расположен на этаже, а мусоропровод – между этажами. Практически все брежневки расположены в выгодных районах города с развитой инфраструктурой.
В начале 1990-х годов прекратилось строительство ломовых домов брежнесского типа и на смену им пришли дома улучшенной планировки.
Характеристики и особенности дома 1-447С-47
Тип дома — кирпичный
Этажей — 9
Высота комнаты 2,64см.
несущих стен толщиной 380мм.
Наружные стены из силикатного и/или рядового глиняного кирпича. 510 (640) мм
Наружная верста обычно отделочный кирпич.
Перекрытия панельные круглопустотные преднапряженные 220 мм.
Дома брежневской планировки оборудованы всеми видами коммуникаций,
Крыша плоская, водоотвод внутренний.
Лифт, мусоропровод.
Квартиры — 1,2,3,4 комнаты
Годы постройки — 1960-1980-е гг.
Общую площадь квартир данного типа трудно систематизировать из-за большого количества серий этих домов.
1 комн. — 32 — 33,9 кв.м.
2 комн. — 43,7 — 44,3 кв.м.
3 комнаты — 57-61 кв.м.
Общие фото домов брежневского типа:
Рядовой раздел планировки квартир
«К» «.
Нам не удалось найти точной информации о серии домов, относящихся к « Ленинградские женщины «.Так, например, сайт garantplus48.ru описывает Ленинград так:
Дома Ленинградской планировки (или Ленпроекта) построены в 70-х — 80-х годах XX века. Начало строительства домов этого типа ознаменовало переход на более комфортный и современный уровень жилья. Материал изготовления дома — или. Такие дома бывают в виде « » — длинных многоподъездных домов. Девятиэтажки ленинградской планировки очень легко спутать с 91-й серией, единственное внешнее отличие – наличие лоджии с торца здания (видно на фото 1 и 3).Как правило, особенностью домов с квартирами ленинградской планировки является то, что окна (кроме угловых квартир) выходят на одну сторону. То есть все комнаты расположены с одной стороны вдоль длинного широкого коридора. Межквартирные стены несущие, что обеспечивает отличную звукоизоляцию. Межкомнатные перегородки не несущие, но за счет особенностей планировки позволяют перепланировать квартиру на свой вкус.Большой плюс квартиры ленинградской планировки – большой (по сравнению с большинством квартир улучшенной планировки) санузел.В народе этот макет называется « ленпроект » или « Ленинградка ». В Липецке примером Ленпроекта могут служить дома № 7 и 8 по ул. 9 мкр.
Особенности домов Ленинградской планировки (Ленпроект):
- 1 комнатная — 32-36 кв.м.
- 2 комн. — 45-49 кв.м.
- 3 комнаты — 60-68 кв.м.
- 4 комнаты — 78-85 кв.м.
Общие фото домов с квартирами Планировка Ленинграда :
- Площадь кухни от 8 до 10 метров.
- все квартиры (кроме угловых) имеют окна на одну сторону.
- балкон длиной 4-4,5 метра.
- отдельно
- высота потолков 2,7 метра.
- Есть лифт и мусоропровод.
- обычно расположены в центральных районах города
Вот планы макета:
1 комната
2 комната
3 комната
3 номера
3 номера Уголок
в то же время, Красноярские фирмы Арбис и Экспресс, описывающие « Ленинградка » , дайте хоть и похожие, но все же разные описания и макеты.
При этом в них также не указываются конкретные серии домов: Принципиальные отличия: кухня — 7-9 кв.м., санузел раздельный. Комнаты тоже раздельные. Но есть исключения. Так проходные помещения делаются в 4-х, а в некоторых 2-х комнатных, которые расположены над арками.В Красноярске массовое строительство «Ленинграда» велось в Ветлужанке, Первомайском, в меньшей степени в районах Копылов, Пашенный, Северный. А единичные экземпляры «Ленинграда» можно встретить практически во всех районах города.Только в Центре города, Академгородке и в районе Взлетки их никогда не устанавливали.
Характеристика:
Комнаты: раздельные. (см. исключения)
Общая площадь:
1 комната – 34-36 кв.м.
2 комнаты – 46-49 кв.м.
3 комнаты – 62-68 кв.м.
4-комнатная – 64 кв.м. (только на первых этажах и в угловых подъездах)
Кухня: 8-9 кв.м. (в угловых квартирах 7 кв.м.)Санузел: раздельный.
Материал стен: панель.
Высота дома: 5 этажей.![]()
Высота потолка: 255 см.
Наличие мусоропровода.
Газификация: отсутствует.
1 комната
Новое понимание дома? на JSTOR
АбстрактныйВ статье рассматривается отношение зарождающегося российского «среднего класса» к приватизации жилья. Основное внимание уделяется вопросам о том, повлияла ли частная собственность на понимание этими людьми «дома», привела ли она к большей удовлетворенности своим жильем и дала ли им ощущение себя «заинтересованными сторонами» в российском обществе.Основным методом исследования было анкетирование по электронной почте жителей Москвы, Санкт-Петербурга и трех провинциальных городов. Также представлена история жилья в Советской России, а также обзор исследований жилья и дома в других промышленно развитых странах.
Информация о журнале Решение редакции изменить название давно сложившейся советской
Исследования, впервые опубликованные в 1949 году, последовали за распадом Советского Союза.
Союза в конце 1991 года.Он отражал убеждение, что в результате страны
бывшего советского и восточноевропейского пространства постепенно сблизятся
связаны как с Европой, так и с Азией, продолжая при этом представлять отличительные темы
для исследования в результате их конкретного опыта.
«Советские исследования» были главным академическим журналом в мире.
посвященный политическим, экономическим и социальным делам того, что когда-то было
Страны советского блока, в том числе их история в советский период.
Европейско-азиатские исследования по-прежнему сосредоточены на этом направлении исследований.
темы.В то же время новое название призвано отразить то, как
трансформация политических и экономических систем этих стран влияет
их отношения с остальной Европой и растущие связи между тем, что
была советская Средняя Азия и другие страны как Европы, так и Азии.
Основываясь на двухсотлетнем опыте, Taylor & Francis за последние два десятилетия быстро выросла и стала ведущим международным научным издательством.
Группа издает более 800 журналов и более 1800 новых книг каждый год, охватывающих широкий спектр предметных областей и включающих оттиски журналов Routledge, Carfax, Spon Press, Psychology Press, Martin Dunitz и Taylor & Francis. Taylor & Francis полностью предана своему делу. публикации и распространению научной информации самого высокого качества, и сегодня это остается первоочередной задачей.
хрущевок серии i 447. Необычная перепланировка.Стандартный и действительный срок службы
Кирпичные дома серии 1-447 относятся к так называемым хрущевкам. Строились они с 1958 по 1970 год, всего было 54 модификации домов этой серии: от 1-447С-1 до 1-447С-54. Основные характеристики этих домов:
Материал стен — необлицованный красный кирпич.
Этажность — 3, 4, 5, первый этаж жилой.
Форма прямоугольная, по торцам 2 ряда окон без балконов.Балкон предусмотрен во всех квартирах, кроме первого этажа.
Крыша 4 или 2 скатная.
На каждом участке по 4 квартиры.
Общая (жилая) площадь квартир: однокомнатных 28-32 (15-20) м2, двухкомнатных 41-44 (28033) м2, трехкомнатных 40-57 (26-41) м2
Высота потолков — 2,5 м.
Конструкции домов этого типа достаточно прочные — по результатам мониторинга износ составляет не более 7%. Дома серии 1-447 сносу не подлежат.Именно по этой причине остекление балкона в домах серии 1-447 является очень актуальным мероприятием, ведь оно помогает защитить, пусть и небольшой, балкон от атмосферных воздействий, а также, есть возможность расширить его площадь за счет остекления с расширением. Над верхним этажом балкона можно установить крышу (без ограничений).
Чем можно застеклить балкон в доме 1-447
Решение о том, каким может быть остекление балкона в домах серии 1-447 — холодным или теплым, с выносом или без, можно принимать только после тщательного осмотра состояния балконных конструкций.Возможны следующие варианты остекления балкона в домах серии 1-447:
Алюминиевый профиль для холодного остекления.
.. Наша компания предлагает очень качественное холодное остекление Provedal. Это самый простой и дешевый вариант. Он включает в себя установку каркаса с раздвижными дверями со стеклом или одинарным остеклением, наружную и внутреннюю (по желанию заказчика) обшивку парапета. Над балконом верхнего этажа устанавливается козырек из профлиста или поликарбоната.Поскольку алюминиевая рама имеет малый вес, усиление конструкций не требуется. Холодное остекление балкона в хрущевке серии 1-447 позволяет поддерживать температуру в зимнее время на 10-15 градусов выше, чем на улице. А вот при сильных морозах балкон промерзнет.
Полутеплое остекление. Лучше всего для этой цели подходят слайдоры и профили ARtek. Суть этого вида заключается в том, что балкон утепляется вдоль парапета, пола и потолка (при необходимости) пенопластом или пеноплексом и устанавливается «теплый» каркас с однокамерным стеклопакетом.Отопление не предусмотрено. Такое остекление балкона в домах серии 1-447 позволяет сохранять положительные температуры зимой.
По стоимости этот вариант немного дороже холодного вида.
Теплое остекление предусматривает усиление конструкций, качественное утепление всего балкона, устройство отопления (теплый пол или вынос радиаторов). Рама устанавливается трех- или пятикамерная, стеклопакет — двухкамерный энергосберегающий. Этот вид является самым дорогим в плане стоимости, но и самым эффективным.Подходящие профили: Slidors, Rehau, ARtek, KBE, MONTBLANC.
Все виды остекления могут выполняться с приставкой: по подоконнику или плите. Это позволяет увеличить полезную площадь балкона.
| Цена от 30 000 руб. | Цена от 28 000 руб. | Цена от 18 000 руб. | |
Стеклопакет однокамерный Створка: | Стеклопакет однокамерный Створка: глухая, поворотно-откидная, складная | ОТДЕЛКА Панели ПВХ, Деревянные панели | |
отлив, козырек, подоконник, установка | пол, потолок, стены дома, парапет |
1-447 — серия жилых домов в СССР, разработанная в конце 1950-х гг.
1-447 — самая массовая серия кирпичных хрущевок, которая строилась по всему СССР с конца 1950-х до середины 1960-х годов, а модификации — до конца 1970-х годов. «Хрущевки» серии 1-447 узнаваемы по наружным стенам из необлицованного кирпича, двум рядам окон в торцевых сторонах (обычно без балконов) и прямоугольному корпусу без угловых секций и выступов.
Дизайн
Дома многосекционного типа, длиной от 2 до 8 секций, чаще 4 секций.Дом состоит из торцевой и рядной секций.
Материал стен кирпич, чаще всего белый силикатный; есть дома из красного кирпича. Без гипса. Некоторые дома окрашены или имеют сочетание красного и белого кирпича для отделки. Несущие стены- продольные наружные и внутренние центральные, поперечные межквартирные и стены лестничных клеток… Перегородки гипсобетонные толщиной 80 мм; перекрытия — многопустотные железобетонные плиты толщиной 220 мм. Крыша большинства домов четырехскатная, покрытая асбестоцементным шифером или кровельным железом.
Водостоки — наружные водосточные трубы… Есть также дома с плоской крышей с битумным покрытием… Высота потолков 2,48м. Первый этаж обычно жилой. Балконы есть на всех этажах, кроме первого. Однако в угловых квартирах есть дома без балконов или вообще без балконов.
Связь
Отопление — вода центральная, холодное водоснабжение — централизованное, канализация — централизованная. Горячее водоснабжение — централизованное или местное: газовые водонагреватели, при отсутствии газоснабжения — дровяные водонагреватели (титаны).При местном горячем водоснабжении в конструкции дома предусмотрены дымоходы, проложенные в поперечных стенах между квартирами и стенах лестничных клеток. Вентиляция естественная на кухне и в ванной комнате. Квартиры оборудованы санузлом и газовой плитой. В районах без газоснабжения, дровяных или электрических плит (при наличии мощных электрических сетей).
Лифта и мусоропровода нет.
Квартиры
В домах есть одно, двух и трехкомнатные квартиры.
.. На подъезде 4 квартиры. В концевых секциях набор квартир 3-1-2-1 или 1-2-2-2, в рядовых 3-2-1-3 или 2-3-2-2. Однако во многих домах используются укороченные рядные секции, которые по планировке совпадают с концевыми секциями.
Комнаты в 2-х комнатных квартирах смежные (редки варианты улучшенной планировки, где 2 изолированные комнаты), в 3-х комнатных две смежные и одна изолированная. Проходная самая большая комната(гостиная) Санузел совмещенный во всех квартирах.
Преимущества и недостатки
Преимущества:
- Благодаря кирпичным стенам дома серии 1-447 превосходят по тепло- и шумоизоляции не только панельные хрущевки, но и более поздние. панельные дома советской постройки. Толстые многопустотные плиты также обеспечивают лучшую звукоизоляцию по сравнению с панельными домами из сплошных плит.
- Отсутствие несущих стен внутри квартиры, широкие возможности по перепланировке.
- Многоскатная жесткая кровля имеет более высокий срок службы (30-50 лет), чем плоская мягкая кровля в панельных хрущевках и более поздних домах (10-15 лет).
Наличие чердака и покрытие светоотражающими материалами (светлый шифер, оцинкованный металл) не позволяют крыше перегреваться летом, поэтому последние этажи домов относительно прохладны. - По сравнению с другими сериями хрущевок балконы почти везде.
- Наличие достаточно больших складских помещений.
- Жилые дома серии 1-447, как правило, располагаются в районах «средней полосы» городов с развитой инфраструктурой и транспортной доступностью.
- Срок службы домов серии 1-447 значительно превышает срок службы панельных домов (в том числе хрущевских) и составляет не менее 100 лет.
Недостатки:
- Смежные комнаты в двух- и трехкомнатных квартирах.
- Тесный холл.
- Санузел совмещен во всех квартирах. При этом можно разместить в ванной стиральную машину небольшой глубины.
- Как и во всех хрущевках, кухня маленькая.
- Очень маленькие посадки даже по сравнению с некоторыми хрущевками.
- Большинство квартир выходят на одну сторону света.

- Нехватка трехкомнатных квартир. Во многих домах серии используются секции укороченного ряда, в которых отсутствуют трехкомнатные квартиры.
В составе серии сначала появились варианты 3 — 5-этажных жилых домов для государственного и кооперативного строительства, затем появились модификации с пристройками и дома для малосемейного проживания.
Дальнейшие застройки включали даже 9-ти этажные дома и единственное, что их всех объединяет, так это то, что они построены из кирпича. Общая этажность в серии от 3 до 12 этажей; появились версии с лифтом и мусоропроводом.
В итоге можно сказать, что серия пережила 3 очереди строительства — первая закончилась, переходим только на пятиэтажные варианты, на второй очереди уже были четырехкомнатные квартиры, а окончательная постройка 9 и 12 -этажные версии пришлись на начало 1993 года.
Год выпуска серии, включая все версии с 1960-х по 1990-е годы.
Квартиры — 1, 2, 3, 4 комнатные, с лоджиями со второго этажа.
На участке разместили 3-4 квартиры.
Санузлы по первоначальному плану, только совмещенные.
Высота потолков в жилых помещениях — 248 см.
Мусоропровод и лифт дома малоэтажного исполнения не оборудовались.
Вентиляция — естественная, вытяжная, через вентблоки в кухне и санузле.
Наружные стены — кирпичные толщиной 38-40 см
Внутренние стены толщиной 27 см.
Перегородки — гипсобетонные толщиной 8 см.
Перекрытие — плиты железобетонные многопустотные — 22 см.
К достоинствам серии можно отнести простоту перепланировки путем сноса межкомнатных перегородок.
недостатки традиционные — тесные кухни, низкие потолки, нет лифта и мусоропровода.
Широкий регион распространения предопределил использование местных, порой некачественных строительных материалов.
1-447 — серия жилых домов в СССР, разработанная в конце 1950-х гг.
1-447 — самая массовая серия кирпичных хрущевок, которая строилась по всему СССР с конца 1950-х до середины 1960-х годов, а модификации — до конца 1970-х.«Хрущевки» серии 1-447 узнаваемы по наружным стенам из необлицованного кирпича, двум рядам окон в торцевых сторонах (обычно без балконов) и прямоугольному корпусу без угловых секций и выступов.
Описание
Дизайн
Дома многосекционного типа, длиной от 2 до 8 секций, чаще 4 секций. Дом состоит из торцевой и рядной секций.
Материал стен кирпич, чаще всего белый силикатный; есть дома из красного кирпича.Без гипса. Некоторые дома окрашены или украшены комбинацией красного и белого кирпича. Несущие стены — продольные наружные и внутренние центральные, поперечные межквартирные и лестничные стены. Перегородки гипсобетонные толщиной 80 мм; перекрытия — многопустотные железобетонные плиты толщиной 220 мм. Крыша большинства домов четырехскатная, покрытая асбестоцементным шифером или кровельным железом. Дренажи – это внешние водосточные трубы.
Есть также дома с битумными плоскими крышами.Высота потолков 2,48 м. Первый этаж обычно жилой. Балконы есть на всех этажах, кроме первого. Однако в угловых квартирах есть дома без балконов или вообще без балконов.
Связь
Отопление — вода центральная, холодное водоснабжение — централизованное, канализация — централизованная. Горячее водоснабжение — централизованное или местное: газовые водонагреватели, при отсутствии газоснабжения — дровяные водонагреватели (титаны). При местном горячем водоснабжении в конструкции дома предусмотрены дымоходы, проложенные в поперечных стенах между квартирами и стенах лестничных клеток.Вентиляция естественная на кухне и в ванной комнате. Квартиры оборудованы санузлом и газовой плитой. В районах без газоснабжения устанавливали дровяные печи или электрические (при наличии мощных электрических сетей).
Лифта и мусоропровода нет.
Апартаменты
В домах есть одно-, двух- и трехкомнатные квартиры. На лестничной площадке 4 квартиры.
В концевых секциях набор квартир 3-1-2-1 или 1-2-2-2, в рядовых 3-2-1-3 или 2-3-2-2.Однако во многих домах используются укороченные рядные секции, которые по планировке совпадают с концевыми секциями.
Комнаты в 2-х комнатных квартирах смежные (редки варианты улучшенной планировки, где 2 изолированные комнаты), в 3-х комнатных две смежные и одна изолированная. Прихожая самая большая комната (гостиная). Ванная комната совмещена во всех квартирах.
Преимущества и недостатки
Преимущества:
Недостатки:
- Смежные комнаты в двух- и трехкомнатных квартирах.
- Тесный холл.
- Санузел совмещен во всех квартирах. При этом в ванной можно разместить неглубокую стиральную машину.
- Как и во всех хрущевках, кухня маленькая.
- Очень маленькие посадки даже по сравнению с некоторыми хрущевками.
- Большинство квартир выходят на одну сторону света.
- Нехватка трехкомнатных квартир. Во многих домах серии используются секции укороченного ряда, в которых отсутствуют трехкомнатные квартиры.

Модификации
На базе серии домов 1-447 возникло несколько десятков модификаций — от серии 1-447С-1 до 1-447С-54. Изменения коснулись, прежде всего, этажности, оснащения лифтами и обновления наружных стен.
Как правило, пятиэтажки относятся уже не к хрущевкам, а к брежневкам.
На основе серии 1-447С разработана серия 114-85.
1-447С
«Второе поколение» кирпичных пятиэтажных домов серии 1-447.
Сюда входят 1-447C-3x (x = 3 … 9), 1-447C-40, 1-447C-43.
Дома этих серий можно узнать по соседним парам балконов в торцах здания и со стороны входов на лестничную клетку. В разных секциях на лестничной клетке может быть 3 или 4 квартиры, в последнем случае площадь больше.
В домах теперь четырехкомнатные квартиры, 2-комнатные и 3-комнатные с ориентацией на две стороны дома («распашонка»). Уменьшено количество смежных комнат.Все квартиры, кроме однокомнатных, имеют раздельные санузлы с продольно ориентированным санузлом, при этом кухня стала несколько меньше.
Отличительная черта – скошенная стена между санузлом и прихожей для увеличения площади последней.
1-447С-47, 1-447С-48, 1-447С-49
Девятиэтажный жилой дом многосекционного типа. Чаще всего он состоит из 4 или 6 секций, однако есть варианты и с другим количеством секций – от 2 до 10.
Дом оборудован пассажирским лифтом и мусоропроводом.
В доме 2-х, 3-х, редко 1-х и 4-х комнатные квартиры. На лестничной площадке 4 квартиры, стандартный набор 3-2-2-3, реже 4-1-2-3 (в основном в концевых секциях). В 2-комнатной комнаты изолированные, в 3-комнатной 2 смежные (проходная гостиная), в 4-комнатной, в зависимости от модификации, могут быть 2 смежные или все раздельные. Санузел раздельный с продольной ванной, кроме 1-комнатных квартир.
Площадь квартир 31-33 м2 для однокомнатных, 44-47 м2 для двухкомнатных, 56-59 м2 для трехкомнатных, 69-70 м2 для четырехкомнатных квартир. Площадь кухни от 5,6 м2 в ранних домах до 7,3 м2 в последних.
В 2-х комнатных квартирах есть балкон, в 3-х комнатных квартирах есть лоджия, утопленная в фасад.
Торцевые секции имеют в конце дома дополнительную лоджию, которая утоплена в фасад (1-447С-48) или выступает из него.
1Р-447С-25
Девятиэтажный односекционный жилой дом на 54 квартиры.Есть варианты со сблокированными секциями. Дом оборудован пассажирским лифтом и мусоропроводом. Лестнично-лифтовый узел расположен в центре дома, от него в противоположные стороны отходят два коридора, каждый из которых содержит входы в три квартиры. В левом коридоре есть мусоропровод, в некоторых домах есть дополнительная эвакуационная лестница.
На лестничной площадке дома 6 квартир: две однокомнатные с окнами во двор и лоджиями, одно и двухкомнатные с окнами и лоджиями на главный фасад.В торцах здания расположены трехкомнатные квартиры с балконами на главный фасад и окнами на три стороны. Площадь квартир составляет 28-33 м2 для однокомнатных квартир, 43 м2 для двухкомнатных квартир, 60-62 м2 для трехкомнатных квартир. Все комнаты в квартирах изолированные. Санузел в однокомнатных — совмещенный, в двух- и трехкомнатных — раздельный с поперечным расположением ванны.
1Р-447С-26
Девятиэтажный жилой дом башенного типа на 54 квартиры.На подъезде 6 квартир: посередине две 1-комнатные, со стороны входных окон — две 2-комнатные, напротив — 2-комнатная и 3-комнатная. Дом оборудован пассажирским лифтом и мусоропроводом. Однокомнатные квартиры имеют широкие балконы, двух- и трехкомнатные балконы. Санузел в однокомнатных — совмещенный, в двух- и трехкомнатных — раздельный с поперечным расположением ванны. В 3-комнатной и примыкающей к ней 2-комнатной комнаты смежные, остальные комнаты раздельные.
Примечания (редактирование)
Ссылки
- География застройки серии 1-447 на карте России — Окнардия
| Жилые здания |
| ||||
|---|---|---|---|---|---|
I- 447С.
«Второе поколение» пятиэтажек серии И-447. Дома этих серий можно узнать по соседним парам балконов в торцах здания и со стороны входов на лестничную клетку. Существует множество модификаций этой серии: от 1-447С-1 до 1-447С-54.
Серия: 1-447C
Тип дома: кирпичный, крупноблочный
Производитель: Главмоспромстройматериалы (МПСМ, в настоящее время входит в корпорацию Главстрой) Разработка типовых проектов жилых домов серии 1-447С с улучшенной планировкой квартир начата институтом «Гипрогор» в 1963 году на основании утвержденных заданий на проектирование 21 мая 1963 г. Государственным комитетом по строительству и архитектуре при Госкомстате СССР.С 1964 года разработку проектов осуществляет ЦНИИЭП жилища.
Годы постройки: 1963-1980-е
Этажность: 3 — 9
Количество комнат в квартирах: 1, 2, 3, 4
Высота жилых помещений: 2,48 м
Количество квартир на этаже: 4
Количество секций (подъездов): из 2
Тип секции (подъезды): Торцевые (с набором квартир на 3-1-2-1 этаже, 1-2-2-2 этажа), рядовые (с набором квартир на 3-2- этаже) 1-3, 2-3-2-2)
Тип секции: Дома серии 1-447 могут быть как двухсекционными, так и многосекционными, в основном пятиэтажными, но есть и четырехэтажные дома.
Комплектация квартир стандартная — 1, 2 и 3-х комнатные, общей площадью от 28 кв.м до 57 кв.м смежных комнат, в угловых двух- и трехкомнатных квартирах, все комнаты изолированные.
Лифты: №
Лестницы: без общего противопожарного балкона.
Вентиляция: естественная вытяжка, блоки в кухне и в санитарной кабине (санузел)
Вывоз мусора: №
Технический этаж: Решение нулевого цикла предоставляется в трех вариантах — без подвала, с техническим подпольем, с подвалом
Технические здания: №
Балконы: во всех квартирах, начиная со 2 этажа
Ванные комнаты: комбинированные
Наружные стены: Наружные стены из кирпича семищелевого или поризованно-дырчатого, толщиной 38-40 см (в ранних домах — до 51 см, но, как правило, применяли низкокачественный силикатный кирпич
Внутренние стены: Толщина внутренней центральной продольной стены, межквартирных стен и стен лестничных клеток 27 см (в ранних домах — 38 см).
Межкомнатные и межкомнатные перегородки: Межкомнатные перегородки — крупнопанельные гипсобетонные толщиной 8 см
Перекрытия: Перекрытия — железобетонные многопустотные плиты толщиной 22 см
Серия 1-447 присутствует абсолютно во всех регионах России, по распространенности среди кирпичных 5-этажек всех периодов занимает 1 место. В разных секциях на лестничной клетке может быть 3 или 4 квартиры. В базах данных некоторых БТИ 5-этажные кирпичные дома серии 1-447 ошибочно указаны как дома серии И-511 (1-511)
.Продажа квартиры Соцгородок | Благовест Агентство Недвижимости
Выбрать регионы на карте
Выбирать Прозрачный ИксДеснянский район Быковня (десн.) Троещина Лесной село Троещина Выгуровщина Водопарк
Дарницкий район Нижние сады Харьковский массив Новая Дарница Осокорки Позняки Бортничи Красный (Червоный) хутор Рембаза Водохин
Днепровский район
Левобережный массив
Комсомольский массив
Радужный
Русановка
Соцгородок
ДВРЗ
Николаевская Слободка
Воскресенка
Старая Дарница
Березняки
Быковня (Днепр.
)
Соломенский район Жуляны Первомайский Отрадный Караваевы Дачи Батыева Гора Соломенка Чоколовка Кадецкий Гай Шулявка (Солом.) Александровская Слободка Нижняя Соломенка Железнодорожный Монтажник Совки Протасов Яр
Оболонский район Минский массив Оболонь Пуща-Водица Приорка (Оболонский район) Вышгородский массив Куреневка (Оболонский) Водохин
Голосеевский район Демеевка Саперная Слободка Чапаевка Теремки-1 Теремки-2 Голосеево Голосеевский (в центре) Корчувате Феофания Пирогов Китайев Добра Путь Кибцентр Университетское городище Мышеловка Багрынова Гора Конча-Заспа
Печерский район Печерский (в центре) Звиринец Липки Печерск Черная гора Верхняя Теличка
Подольский район Мостицкий Подол Витриани Хори Куреневка Виноградарь Приорка (Подольский район) Рыбальский остров Нивки (Подольский) Селище Шевченко
Шевченковский район
Нивки
Шевченковский (КПИ)
Лукьяновка
Сырец
Татарка
Шевченковский (в центре)
Шулявка (Шевч.
)
Святошинский район Беличи Святошин Новобеличи Академгородок Борщаговка Сырец Галахани Катериновка Николаевская Борщаговка Южная Борщаговка Михайловская Борщаговка Берковец Нивки (Святошинский)
В 1956 году Советы заняли первое место — ненадолго.| Журнал Air & Space
Реактивный лайнер Туполев Ту-104, предмет национальной гордости, собирал толпы на выставке народного хозяйства 1959 года в Москве и на всех ее публичных выступлениях. РИА Новости Анатолий Горбачев вспоминает, что в безлунную октябрьскую ночь 1958 года он должен был лететь из Пекина обратно в Москву.
Но его друг Гарольд Кузнецов спросил, может ли он занять свою очередь в ротации пилотов. Кузнецов пытался проявить себя в качестве командира Туполева Ту-104А, прорыва Советского Союза в реактивную гражданскую авиацию, и ему нужно было вести учет налета.Горбачев сказал ладно.
Оба знали то, чего не знала широкая советская общественность. Двумя месяцами ранее другой Ту-104, летевший над Восточной Сибирью, столкнулся с мощным восходящим потоком и оказался на высоте 4000 футов выше своей крейсерской высоты. Затем он потерял мощность и рухнул прямо вниз на 40 000 футов. Тела экипажа и пассажиров были разбросаны по покрытой лесом горной местности более чем на милю. В первой половине 1958 года у прорывного авиалайнера Туполева еще два раза отказали двигатели в полете, оба из которых закончились чудесным восстановлением.
Вылет Кузнецова в Китай прошел без происшествий. Но, пересекая Урал на обратном пути, его самолет попал в турбулентность и стал жертвой явления, для которого наземные службы уже придумали название: подхват , или «захват».
Его -104 беспомощно поплыл вверх, перевернулся и начал пикировать, его спуск был похож на гигантский штопор. Приборы в кабине отказали, и Кузнецов потерял ориентацию в темноте.
Кузнецова все еще работало, и в течение последних двух минут своей жизни он рассказывал диспетчерам все, что мог собрать о характеристиках самолета — человеческий черный ящик, предлагающий данные для великого конструктора Андрея Туполева и его мастерской для изучения позже. .
Поначалу властный Туполев отказывался признавать вину в своем шедевре. «С самолетом все в порядке», — сказал он, как сообщается, в ярости после череды аварий 1958 года. — Это ты не умеешь на нем летать. Но по наущению Совета Министров СССР он в конце концов внес изменения, позволившие использовать -104 в течение двух десятилетий, перевозя 100 миллионов пассажиров с визитами к дальним родственникам или с поручениями советского государства.
До космической гонки, до рокового пожара на «Аполлоне-1» или гибели трех космонавтов, вернувшихся на Землю на корабле «Союз-11», была реактивная гонка, трагедии и триумфы которой сейчас в основном забыты.
Начавшееся в последние годы Второй мировой войны, когда комбатанты изо всех сил пытались поднять в небо военные самолеты, соревнование продолжалось до 1950-х годов, когда Соединенные Штаты, Великобритания и Советский Союз изо всех сил пытались выставить на вооружение первые пассажирские самолеты. .
Британцы первыми построили пассажирский реактивный лайнер de Havilland DH106 Comet, который прошел испытания в 1949 году и начал летать по регулярным маршрутам в 1952 году. Но два года спустя, когда два авиалайнера разбились в воздухе в течение четырех месяцев друг от друга премьер-министр Уинстон Черчилль приказал остановить флот.Советы могут претендовать на первое непрерывное коммерческое использование реактивных самолетов, которое они начали с модели -104 в 1956 году, за два года до дебюта культового Боинга 707 и возобновления полетов Кометы. У В-104 тоже были свои катастрофы, но Туполеву и Советам удалось извлечь из них уроки и продолжать летать.
Спустя почти полвека после авиакатастрофы, в которой погиб его друг, Горбачев пьет чай с печеньем с двумя другими летчиками из первой группы пилотов-104 и вспоминает те первопроходческие дни.
В 1958 году Горбачев в возрасте 26 лет был самым молодым капитаном в Советском Союзе. Сейчас ему 80, но он по-прежнему самый младший в своей группе сверстников. Его товарищи, Николай Гроховский и Владимир Ушоф, восьмидесятилетние, стойкие и все еще более чем зычные. Действие происходит сырым зимним днем в музее Аэрофлота, редко посещаемом трехкомнатном здании, спрятанном в безликом офисном комплексе через дорогу от терминала внутренних рейсов в московском аэропорту Шереметьево. Сидя за раскладывающимся столиком среди мешанины устремленных в небо моделей самолетов и ярких форм стюардесс 1960-х годов, трое ветеранов до наступления темноты рассказывают о былых днях.
Никто из летчиков никогда не встречал могучего Туполева. Но они вспоминают его с уважением, несмотря на его яростное оскорбление их товарищей, которые погибли, управляя его машиной. «Туполев сделал все, что мог, как конструктор, для обеспечения безопасности», — бубнит Усхоф. «Нужно помнить, что Ту-104 летел на совершенно новой высоте, где у метеорологов не было опыта ветров и течений».
Учитывая головокружительные темпы разработки -104, кажется чудом, что он вообще летал.В наши дни, когда на проектирование и испытания нового самолета может уйти десятилетие или больше, трудно представить себе темпы ранней холодной войны, когда производители аэрокосмической техники выпускали быстро развивающиеся поколения военных самолетов, а технологии несколько бессистемно распространялись на Гражданская авиация. И-104 был создан за 14 месяцев в 1954-55 годах на платформе дальнего бомбардировщика Ту-16, известного на Западе как «Бэджер», который сам по себе был девственной технологией.
В этот лихорадочный период Андрей Николаевич Туполев находился на пике своей долгой, насыщенной карьеры.Туполев родился в 1888 году недалеко от Твери в центре России. Он учился в Московском императорском техникуме. Одним из его профессоров был Николай Жуковский, почитаемый отец русской авиации, который в 1909 году читал первый в стране университетский курс аэродинамики.
Жуковский и Туполев объединились после большевистской революции, создав в 1918 году Центральный аэрогидродинамический институт, или ЦАГИ, головной мозг будущей огромной отрасли.
Первый самолет с именем Туполева, полудеревянный моноплан, получивший обозначение АНТ-1, поднялся в воздух в 1923 году.Через два года Туполев спустил на воду свой первый боевой самолет — полуторный разведчик АНТ-3.
В 1937 году туполевский АНТ-25 доставил Валерия Чкалова через Северный полюс в американский штат Вашингтон — подвиг, неустанно прославляемый поколениями советских пропагандистов. «Настоящий гений Андрея Николаевича был организаторским», — говорит Владимир Ригмант, домовладелец и куратор однокомнатного музея Туполева, расположенного в московской штаб-квартире того, что сегодня называется Публичным акционерным обществом «Туполев».«Он мог видеть практические средства для реализации сложных идей».
Добиться встречи с Ригмантом, работающим на Туполевском заводе с 1970-х годов, непросто. Как и большая часть российской промышленности, компания по-прежнему ведет себя так, будто у нее есть важные секреты, которые нужно защищать. Моя настойчивость вознаграждается поездкой в промышленно развитый восточный сектор Москвы, в приземистое офисное здание 1960-х годов, которое может понравиться только центральному планировщику.
Осторожно отпирая дверь без опознавательных знаков с одной стороны большого голого вестибюля, Ригмант вводит меня в свою сокровищницу.Он выхватывает указку, чтобы просмотреть модели самолетов полувековой давности, застрявшие хвост к носу в ограниченном пространстве, пробегая по перечислению лет и номеров моделей: Ту-2, Ту-70, Ту-205, Ту-154. На стене семейное фото дизайнера с женой Юлией, которая тесно с ним работала.
Тем не менее, всего через четыре месяца после полета Чкалова Туполев был захвачен безумием партийных чисток Иосифа Сталина. Он был арестован как диверсант в октябре 1937 года и под пытками сознался в целом ряде «преступлений» против советского народа.
Однако вскоре Сталин и начальник его охранки Лаврентий Берия поняли, что совершили ошибку. Европе угрожала война, и без ее руководящего духа советская авиация пребывала в хаосе. Туполев был спасен из московской Бутырской тюрьмы в конце 1938 года и переведен в тюрьму Болшево, чтобы возглавить новое конструкторское бюро, контролируемое тайной полицией Берии, НКВД.
Там он создал сталинскую версию списка Шиндлера, передав своим похитителям имена около 150 заключенных инженеров и ученых, которых он объявил важными для своей патриотической работы.Берия добросовестно собирал эти элитные кадры со всего архипелага ГУЛАГ, несомненно, спасая жизни большинству из них.
Еще в заключении Туполев и его коллеги-конструкторы создали бомбардировщик Ту-2. Верховный суд СССР помиловал Туполева, когда нацисты захватили Западную Россию в июле 1941 года, как раз вовремя, чтобы он эвакуировал свою мастерскую в Омск, в Сибирь.
После войны советская авиация обогатилась технологиями, которыми добровольно или невольно поделились западные союзники страны.В 1944 году четыре американских бомбардировщика Boeing B-29 Superfortress были вынуждены совершить аварийную посадку во Владивостоке после налета на Японию. Сталин отправил их в Москву и поручил Туполеву перепроектировать их, чтобы создать советскую версию. В результате появился Ту-4, который впервые поднялся в воздух в мае 1947 года.
Одновременно главный конструктор разработал первый в Советском Союзе реактивный бомбардировщик с двигателями Rolls-Royce Nene и Derwent, которые Великобритания на короткое время предоставила по лицензии. Этим самолетом стал Ту-12, совершивший полет в декабре 1947 года.В начале 1950-х Туполев вернулся к турбовинтовым технологиям для стратегического бомбардировщика Ту-95 («Медведь»), который все еще летал, когда Советский Союз распался в 1991 году.
Даже в этом безумии военных изобретений Туполев не забыл авиалайнеры. Он разобрал части своих драгоценных «Суперкрепостей», чтобы сделать пробную гражданскую версию Ту-4. И как только в 1952 году Ту-16 поднялся в воздух, он начал лоббировать в коммунистической верхушке пассажирский вариант. Планы конверсии Туполева мало что продвинулись, пока был жив Сталин.Диктатор путешествовал, за редким исключением, на поезде и считал, что обычные граждане должны делать то же самое. По мнению Сталина, самолеты и ограниченные ресурсы, доступные для их постройки, предназначались для войны.![]()
С другой стороны, Никита Хрущев, премьер-министр, пришедший к власти после смерти Сталина в 1953 году, любил летать. Он рассматривал гражданскую авиацию как опору своей грандиозной стратегии «догнать и перегнать» Запад. Туполев был приглашен еще в конце 1953 года, чтобы представить идею гражданского Ту-16 в ЦК КПСС, и к июню 1954 года получил приказ начать работу.Ту-104 был в пути.
Переоборудовать новенький реактивный бомбардировщик для гражданских целей оказалось не так просто. Бомбоотсек, например, пришлось трансформировать в багажный отсек. Но основная проблема заключалась в том, что пассажирскому лайнеру требовалась герметичная кабина, а в фюзеляже были вырезаны многочисленные дополнительные отверстия для окон и дверей.
Британское расследование катастрофы «Кометы» было отложено, потому что оба крушения произошли в море, что затруднило поиск обломков.Туполев с самого начала справедливо заподозрил, что корпус самолета пострадал от усталости металла. Одна из его корректировок заключалась в том, чтобы просто увеличить вес -104, утолщив обшивку фюзеляжа до 1,5 мм по сравнению с 0,9 мм у Кометы.
Дополнительный вес вдвое сократил дальность полета Туполева до 1900 миль и значительно увеличил расходы на топливо, но аппаратчики одобрили осторожность Туполева.
Туполев также выбрал круглые окна вместо квадратных на «Комете», исключив углы как точки давления. Он построил огромный испытательный бассейн в штаб-квартире ЦАГИ под Москвой, куда можно было погружать макеты реактивных самолетов для имитации атмосферного давления.И он оснастил -104 авионикой, которой раньше не было на советских самолетах, например, радаром.
К концу 1950-х годов мастерская Туполева разрослась до 10 000 сотрудников и занимала обширный комплекс в промышленно развитой восточной части Москвы; через дорогу от конструкторского центра находился завод по производству прототипов. Эта масса человечества была достаточно эффективной, чтобы первый испытательный полет -104 состоялся на два месяца раньше запланированного, в июне 1955 года.
К марту 1956 года Хрущев был готов использовать творение Туполева, чтобы одержать международную PR-победу.
Он приказал -104 лететь в Лондон с официальными лицами, которые закладывали там основу для саммита Восток-Запад. Согласно российскому телевизионному документальному фильму, Хрущев сам хотел прокатиться на малоиспытанном лайнере в Хитроу, и Туполеву пришлось мчаться на дачу импульсивного лидера, чтобы отговорить его от этого.
Для британских авиационных профессионалов, все еще оплакивающих потерю «Комет», прибытие -104 стало моментом мини-спутника: неожиданное советское технологическое достижение падает с неба, вызывая одновременно восхищение и тревогу.«Русские намного опередили нас в разработке таких самолетов и реактивных двигателей», — сказал тогда Би-би-си главный маршал ВВС Великобритании в отставке Филип Жубер де ла Ферте. «Многим на Западе придется изменить свои взгляды на прогресс, достигнутый советскими авиационными технологиями».
Интерьер Юлии Туполевой для -104 сам по себе стал сенсацией. Сбивая с толку стереотипы о большевистской строгости, он дарил роскошную атмосферу комфорта.
«Обстановка салона, казалось, была из школы роскоши Восточного экспресса 1930-х годов», с фарфоровыми туалетами и тяжелыми занавесками, — вспоминал бывший наземный сотрудник Гатвика десятилетия спустя на онлайн-форуме энтузиастов.Летчик Владимир Ушоф вспоминает, что кабина была «в стиле Екатерины Великой». В течение года или двух экономия победила эстетику госпожи Туполевой, и -104 был переконфигурирован со стандартным рядом сидений на 70 пассажиров вместо первоначальных 50.
Торжественный прием самолета не смог скрыть под капотом проблемы. Туполев не успел или не удосужился совладать с огненным выхлопом наспех переделанного бомбардировщика, испускаемым при взлете. «Вспышки пламени от «мокрого старта» самолета [запуск газотурбинного двигателя с уже залитым в него топливом] могли вызвать массовый исход наземного персонала», — вспоминал бывший сотрудник Gatwick.
Вернувшись домой, в Россию, пилоты первого поколения -104 делали все возможное, чтобы сгладить другие серьезные проблемы, прежде чем самолет взялся за невинных людей.
Во-первых, взлетно-посадочные полосы как внутри, так и за пределами Советского Союза были слишком короткими для нового реактивного самолета, который взлетал со скоростью 186 миль в час по сравнению со средней скоростью 124 миль в час для самолетов с поршневыми двигателями. Согласно спецификациям -104, для безопасного взлета и посадки требовалась взлетно-посадочная полоса длиной 1,5 мили. Когда самолет начал летать, только один советский гражданский аэропорт в Омске в центральной Сибири соответствовал требованиям.Взлетно-посадочная полоса во французском Ле-Бурже, куда, естественно, был отправлен 104-й, чтобы показать себя на парижском авиасалоне, имела длину 2,4 мили. Амстердам, раннее коммерческое направление, предлагал всего 1,8 мили.
Посадка осложнялась еще и отсутствием на -104 задней передачи. Если пилот чувствовал, что тормоза недостаточно, чтобы остановить 67-тонный корабль, он мог выпустить два парашюта из хвоста. Однако у этой стратегии были свои риски. «При боковом ветре самолет мог начать крутиться, как флюгер», — вспоминает Горбачев, добавляя преуменьшение: «Это создавало определенные сложности.
Тем не менее Ту-104 поступил в регулярные пассажирские перевозки в сентябре 1956 года и верой и правдой служил Аэрофлоту более 20 лет. Было построено около 200. Они позволили тем советским гражданам, которые были достаточно привилегированы, чтобы иметь допуск к зарубежным поездкам, летать без пересадок вокруг Европы, а обычным гражданам было удобнее добираться до отдаленных мест внутри страны, таких как Иркутск, расположенный недалеко от озера Байкал.
Чтобы доказать, что первая поездка в Лондон не была случайностью, Хрущев отправил балет Большого театра обратно на самолете -104 в конце 1956 года.В какой-то момент Аэрофлот одновременно приземлил в Хитроу три самолета -104, чтобы опровергнуть сообщение британской прессы о том, что в рабочем состоянии находится только один прототип.
Когда -104 действительно попал в беду, то не из-за взлетов и посадок, которые мучили пилотов, и не из-за фюзеляжа, который благодаря мерам Туполева действительно оказался прочнее, чем у de Havilland Comet.
Скорее, самолет не всегда мог оставаться устойчивым в злых течениях, с которыми он сталкивался на своей малоизученной крейсерской высоте.
После четырех случаев «захвата» в 1958 году было начато расследование.Не опасаясь общественного резонанса, Кремль оставил В-104 в полете, хотя и уменьшил его максимальную высоту до 10 000 метров (32 841 фут), и дал Туполеву месяц на придумывание средств правовой защиты. Советские инженеры выявили основной недостаток угла атаки самолета в полете и внесли изменения в конструкцию крыла и органов управления полетом, что решило многие, но не все проблемы.
В начале 1960-х годов Усхоф присоединился к эскадрилье В-104, предназначенной для переброски правительственных вельмож, и летал с преемниками Хрущева, Леонидом Брежневым и Алексеем Косыгиным, по государственным делам внутри страны и за рубежом.(Сам Хрущев в основном работал с личным пилотом по имени Николай Цыбин, который, как вспоминают летчики-104 с некоторым затянувшимся превосходством, так и не научился управлять реактивными самолетами.
) Но момент славы советской гражданской авиации на мировой арене был краток. В 1958 году Boeing 707 начал предлагать пассажирские перевозки с дальностью полета 6 250 миль, что более чем в три раза больше, чем у Boeing 104, и Советский Союз так и не догнал его.
Транспортные бюрократы потратили драгоценные годы на споры о том, подходят ли в конце концов авиаперелеты гражданским лицам — сегодня пилоты предполагают, что сомнения отчасти были вызваны серийными авариями с И-104.Следующая разработка Туполева, Ту-114, была конверсией трансконтинентального бомбардировщика Ту-95. Самым массовым советским авиалайнером 1960-х годов был еще один турбовинтовой самолет Ил-18 завода Ильюшина.
Только в 1972 году Туполев вернулся с первым самолетом, который он с нуля спроектировал как пассажирский, Ту-154. В коммунистической сфере влияния это был хит. Было изготовлено более 1000 Ту-154, около 200 летают до сих пор.
Аэрофлот списал Ту-104 в 1979 году.Военные держали несколько самолетов для перевозки личного состава до 1981 года, когда при взлете из Пушкина под Ленинградом разбился Бо-104, в результате чего погибли 52 человека, в том числе большинство высших командиров Тихоокеанского флота советского флота.
Расследование установило, что самолет был перегружен, но катастрофа всколыхнула призрак Гарольда Кузнецова, и весь остальной флот был законсервирован.
В постсоветский период российские гражданские авиастроители показали себя плачевно. Аэрофлот, который до сих пор используется в качестве международного авиаперевозчика России, и новые приватизированные авиакомпании, взявшие на себя большинство внутренних маршрутов, перешли на переоснащение Боингами и Аэробусами, несмотря на высокие импортные тарифы.Боевые самолеты МиГ и Сухого российского производства продолжают продаваться по всему миру, но единственной недавней продажей Туполева для гражданских целей была Сирия, чья национальная авиакомпания согласилась в 2011 году купить три Ту-204 за 108 миллионов долларов. Учитывая последующие события в Сирии, даже эта сделка выглядит сомнительной.
В последнее десятилетие Кремль сосредоточил свои усилия в области гражданской авиации на разработке так называемого Sukhoi Superjet, узкофюзеляжного самолета вместимостью от 75 до 90 человек, предназначенного для конкуренции с Embraer и Bombardier на мировом рынке ближнемагистральных перевозок.
Пока бразильцам и канадцам опасаться нечего.
В то время как Superjet совершил свой первый полет в 2008 году, на самом деле сегодня в эксплуатации находится всего около дюжины самолетов, в основном Аэрофлота. Единственным международным заказчиком на сегодняшний день является национальная авиакомпания Армении «Армавиа». Контракт с индонезийской авиакомпанией Kartika Airlines был сорван — как и перспективы Superjet в целом — когда демонстрационный полет в мае 2012 года врезался в гору на Западной Яве, в результате чего погибли все 45 человек. люди на борту.Даже патриотически настроенные пилоты, бывшие на Ту-104, не испытывают большого энтузиазма по поводу неудачливого ближнемагистрального самолета. «Они могут построить его, но кто его купит?» — шутит Анатолий Горбачев, ожидая переполненного автобуса, который будет пробираться сквозь вечерний час пик из Шереметьево в Москву.
Вернувшись в город, великий Туполевский завод на реке Яузе пришел в упадок как физически, так и экономически.
Центр дизайна расположился в том же невзрачном здании, что и музей Владимира Ригманта. Но завод снесли, а на его месте стоят сверкающие новостройки с названием «Туполев Плаза».Тем не менее, скромные комнаты на протяжении десятилетий порождали технологии, которые соответствовали лучшим мировым стандартам и иногда претендовали на титул.
Крейг Меллоу — независимый журналист из Статен-Айленда, Нью-Йорк.
Пилот Ту-104 Николай Гроховский (справа) с директором музея Аэрофлота Анатолием Иваненко в 2012 году.Ирина Кузнецова К 1958 году некогда роскошный интерьер Ту-104 был переработан в целях экономии.
Ховард Сочурек / Time Life Pictures / Getty Images
В 1956 году, когда западная пресса заявила, что существует только один прототип Ту-104, Советы доказали, что авиалайнер находится в производстве, посадив три самолета в лондонском аэропорту Хитроу.© Daily Mail/РЕКС/Алами
Новейший российский авиалайнер Sukhoi Superjet (испытания в аэродинамической трубе в 2007 г.) потерпел неудачу, но может подняться, как и первый в мире серийный авиалайнер de Havilland Comet.
РИА Новости
Первый в мире серийный авиалайнер de Havilland Comet (1952 г.
).НАСМ (SI2002-2526)
Америка вступила в эру реактивных самолетов в 1954 году с Boeing 707.
Боинг
Советские конструкторы Андрей Туполев и сын Алексей (в шляпах, 1969 г.).РИА Новости
Авиалайнер Андрея Туполева и сына Алексея -114 (1959 г.).
KEYSTONE-Франция / Gamma-Keystone через изображения Getty
Во время демонстрационного полета в мае 2012 года Superjet-100 врезался в индонезийскую гору Салак менее чем через час после взлета.
РИА Новости
Серийная модель Ту-104 выставлена в Государственном музее авиации в Киеве, Украина. Когда авиалайнер был введен в эксплуатацию, миллионы людей смогли дешево путешествовать по огромному Советскому Союзу.
Антон Довбуш
Реактивный лайнер Туполев Ту-104, предмет национальной гордости, собирал толпы на выставке народного хозяйства 1959 года в Москве и на всех ее публичных выступлениях.РИА НовостиРекомендуемые видео
.








Стена может отделываться под кирпич, включает в себя различные металлические вставки и светильники. Идеальным решением при оформлении трёхкомнатной квартиры в таком стиле является использование модульной мебели, которая не только отличается своей привлекательностью, но и характеризуется невероятно функциональностью. А при желании гарантировать максимально высокий уровень комфорта и света необходимо использовать гладкую штукатурку, которая позволяет визуально увеличить пространство.
Нередко в процессе создания дизайна гостиной используется биокамин, а в спальне отличным решением станут шкафы с зеркальными поверхностями.
Лучше всего отдать предпочтение душевой кабине, которая позволит выделить место под стиральную машину и различные другие предметы мебели.
После того как ламинат или паркет уложены на пол, можно приступать к отделке стен. Для этого отличным решением станет использование обоев, краски или различных фактурных материалов.
Это считается достоинством, упрощающим задачу создания дизайна помещения. Такие зоны оформить проще, чем узкие вытянутые варианты. Квадратные комнаты легче воспринимаются, они скрывают выступы и ниши в случае прямоугольной планировки;
Оптимальный цвет, визуально расширяющий пространство. Главное преимущество в том, что он позволит подобрать мебель и аксессуары абсолютно любого цвета.Также его можно разбавлять натуральной палитрой – древесными оттенками и молодой зеленью, создавая разное настроение и стиль;
Создает интересный звук с яркими желтыми, бирюзовыми, розовыми и голубыми тонами;
Мебели очень мало, но в сочетании с двухуровневым потолком она создает иллюзию большой, наполненной светом комнаты;
Бежевые тона создают изящную атмосферу, белый потолок наполняет комнату светом, а яркие аксессуары расставляют акценты.
С. Хрущева, при котором массово строились дома с малогабаритными квартирами, низкими потолками и очень миниатюрными кухнями. Их площадь достигала 5 – 6 квадратных метров, что явно недостаточно для размещения семьи даже из двух-трех человек. Но люди были рады получить даже такую отдельную квартиру.
Дома с подобной планировкой квартир стали строиться во времена генсека Н.С. Хрущева (с 1956 г.) — и их строительство продолжалось до 1985 г. При этом характер зданий несколько изменился.
Маленькая кухня – 3-4 кв.м.
Дома в основном панельные, иногда кирпичные. Отличительные особенности – маленькие кухни, отсутствие лифтов, общие санузлы, плохая тепло- и звукоизоляция.
77 метров
