Студия 33 квадратных метра: Студия недели: проект уютной квартиры на 33 квадратных метрах — INMYROOM
Дизайн квартиры 33 кв.м — интересные варианты
33 квадрата — не такая уж маленькая площадь, можно сказать стандартная для современных новостроек. И уж точно на ней можно разместить несколько функциональных зон, при этом сделать пространство не захламленным и эргономичным. Конечно, внимание заслуживает и то, как сделать красивый дизайн квартиры площадью 33 кв. м. Об этом рассказываем в статье.
Оформляем интерьер квартиры площадью 33 кв. м
Планировка
- Однушка
- Студия
Функциональные зоны
- Гостиная
- Спальня
- Кухня
- Системы хранения
Интерьерные стили
Рассмотрим два варианта планировок.
Однушка
В новостройках, да и в домах советских построек, тех же хрущевках, однушки площадью 30-33 квадратных метра — не редкость. В новостройках такие планировки состоят из кухни около 8-10 квадратных метров, комнаты — 10-13 квадратов, санузел — 3-4 квадрата и прихожей-коридора 4-5 квадрата.
На такой территории несложно организовать функциональное пространство, но о глобальной перепланировке вряд ли можно думать. Во-первых, объединять кухню с комнатой — означает лишить себя приватности. Во-вторых, переносы стен и тем более «мокрых» зон — трудоемки, хоть и возможны при ряде определенных условий (например, перенести кухню в коридор можно, но только если квартира находится на первом этаже и с соблюдением ряда инженерных правил). Поэтому однокомнатную квартиру лучше правильно зонировать, выбрать соответствующую функциональную мебель и правильную отделку, чтобы небольшое помещение не смотрелось захламлённым.
Unsplash
Студия
В квартире-студии нет разделяющей стены между кухней и комнатой, поэтому здесь можно применить разные варианты визуального разделения и размещения функциональных зон. Однако привязка к «мокрым» точкам все же есть, поэтому установить кухонный гарнитур с мойкой и всей техникой в любом удобном месте уже не получится.
Тем не менее, можно поиграть с размещением гостиной зоны и найти место для кровати — даже на небольшой площади это реально.
Дизайнер: Ольга Жугина. Ведущий дизайнер: Вячеслав Жугин
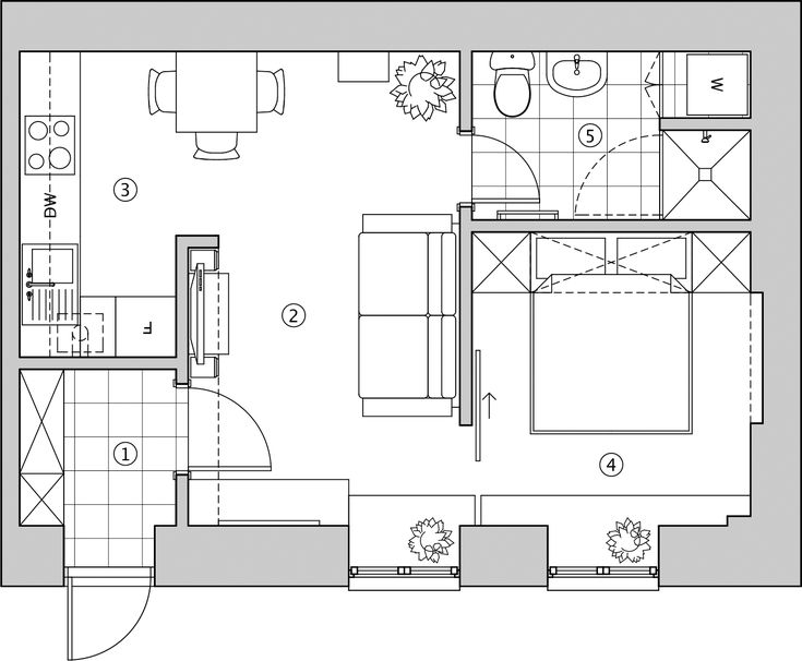
Как мы и упоминали выше, дизайн-проект квартиры 33 кв. м может включать все важные зоны: гостиную (для отдыха и сбора семьей и друзьями), кухню (для приготовления пищи) и спальню. Ванную комнату и прихожую мы не берем в расчет, они по умолчанию есть в каждой квартире.Гостиная
С помощью грамотного зонирования можно разграничить одну комнату на гостиную и спальню. Например, поставить кровать в нишу, сделать импровизированную перегородку из стеллажа, заказать в мастерской стеклянную перегородку, чтобы обеспечить хорошую инсоляцию помещения, удаленного от окна. Вариантов много, и какой из них выбрать, зависит от ваших пожеланий и бюджета. Строить глухие перегородки из гипсокартона все же не рекомендуем, площадь этого не позволяет и визуально они только съедят полезное пространство.
Еще один вариант — сделать импровизированную гостиную в кухне. Для этого достаточно всего лишь найти место для дивана, а на стену повесить телевизор. Гостиную зону можно объединить с обеденной, и в таком случае изолированная комната останется полностью приватной.
Unsplash
В студии еще проще — можно распределить имеющиеся метры так, как удобно, и выделить пространство для мини-гостиной.
Спальня
Постарайтесь найти место для кровати, даже в однушке это реально. Как упоминалось в предыдущем пункте, кровать можно разместить за перегородкой, в нише или просто отделить спальное место шторами. Единственное — если вы оборудуете спальню зону в отдельной комнате, постарайтесь выделить ей место около окна. Свежий воздух и естественный свет важны для здорового полноценного сна.
Дизайн: Галина Ло. Фото: Евгений Гнесин
Как вариант — используйте мебель-трансформер по принципу «диван-кровать-шкаф».
Кухня
Оптимальным вариантом для небольших помещений считается угловая планировка гарнитура, реже — линейная. Если кухня совсем маленькая, можно задействовать подоконник и организовать вместо него импровизированную барную стойку. Отдавайте предпочтение встроенной технике и подумайте о том, чтобы выбрать верхние кухонные шкафы до потолка, так в них поместится больше.
Архитектор-дизайнер: Александра Ткачёва. Фото: Владимир Буданцев
Системы хранения
Важный момент, который нельзя обойти стороной, если говорить о дизайне маленькой квартиры 33 кв. м — наличие систем хранения. В прихожей можно выделить место для высокого шкафа и спроектировать его по своему усмотрению. Обращаться к мастерским для этого совсем не обязательно, подобные системы есть и в масс-маркете, например модульные шкафы «Пакс» от ИКЕА. Если вы объединяете в одной комнате спальню и гостиную, место для гардеробной уже вряд ли найдется, но вполне реален вариант с подиумом.
На нем можно разместить кровать, а внутри — выдвижные ящики.
Instagram @familini
Instagram @two_rooms_apart
Instagram @legkocom
Если планировкой предусмотрен балкон, разместите там хозяйственный шкаф с гладильной доской, пылесосом, сушилкой — это будет оптимальный вариант. Конечно, для этого балкон нужно будет застеклить и утеплить.
Несмотря на то, что сегодня чистые стили встречаются редко, и даже в маленьких помещениях дизайнеры пробуют разные варианты, если вы работаете без профессионала, придерживайтесь простой эстетики.
Скандинавский стиль
Сканди — действительно идеальный вариант для маленького помещения. Для него характерны светлые тона в отделке и мебели, много натуральности, а уют создается с помощью текстиля и небольшого количества декора, поэтому пространство будет выглядеть визуально просторным, но комфортным.
Alvhem
Минимализм
Если вы считаете, что соблюсти минимализм в малогабаритке невозможно, спешим разубедить.
Для этого достаточно продумать закрытые системы хранения, чтобы не захламлять открытые поверхности разными мелочами. А простая отделка, минимум декора и много света помогут сделать пространство визуально больше.
Дизайн: Ольга Розина. Фото: Борис Бочкарев
Современная классика
От традиционной дворцовой классики действительно лучше отказаться, маленькое пространство от этого не выиграет. Зато современная интерпретация стиля придется кстати, в нем достаточно продумать детали. Например, выбрать для отделки стен молдинги, поставить диван с округлыми подлокотниками и добавить блеска с помощью фурнитуры и аксессуаров.
Instagram @obrazyuk_design
Instagram @obrazyuk_design
Лофт
Лофт задумывался как стиль для больших пространств с высоким потолками и окнами. Но сегодня дизайнеры используют его элементы и в малогабаритках.
Берите на заметку — достаточно сделать несколько кирпичных стен, выбрать мебель в брутальном стиле, и квартиру уже можно считать оформленной в лофтовой эстетике.
Дизайн: Ирина Клишина. Фото: Екатерина Будюк
Дизайн: Ирина Клишина. Фото: Екатерина Будюк
Редакция предупреждает, что в соответствии с Жилищным кодексом РФ требуется согласование проводимых переустройств и перепланировок.
Дизайн студии 33 кв. м.: примеры оформления
Содержание
Формирование неповторимого дизайна в студии 33 кв. м.
Люди с ограниченными финансовыми возможностями вынуждены приобретать небольшие квартиры. Часто выбираются студии 33 квадратных метра, которые трудны в обустройстве. Сложности обусловлены отсутствием возможности для использования всех необходимых предметов интерьера. Одно помещение используется в качестве кухни, столовой, гостиной и спальни.
Поэтому желательно придерживаться определенных дизайнерских правил, чтобы сделать комнату комфортной, многофункциональной и красивой.
Правила планировки и зонирования
Для дизайна однокомнатной квартиры 33 кв. м. желательно заранее выбрать способы зонирования пространства и отделочные материалы. Хотя стандартно имеется всего одно помещение, но допускается сделать две отдельные комнаты, изменив планировку. Поэтому во время работы в квартире 33 кв. м. актуально учитывать рекомендации:
- если осуществляется перепланировка, то редко возводятся стандартные межкомнатные стены, поэтому применяются передвижные и легкие перегородки, которые позволяют разделить пространство на гостиную-спальню и кухню-столовую;
- для расширения комнат актуально демонтировать балконную перегородку, но данный процесс обязательно согласуется с местной администрацией, а иначе перепланировка будет незаконной;
- перед использованием различных приемов зонирования оценивается форма помещения, поскольку если оно является квадратным, то формируется две одинаковые комнаты, а при более сложной конфигурации придется делать нестандартные помещения.

Внимание! При разделении комнаты 33 метра на несколько частей, самая дальняя зона отдается под спальню, поэтому здесь может отсутствовать естественное освещение, но обязательно покупаются и монтируются качественные светильники.
Выбор стиля оформления
Для дизайна квартиры 33 кв. м. можно выбирать разные направления в дизайне, для чего учитываются предпочтения жильцов. Но обычно для такого помещения используются следующие стили:
- минимализм, предполагающий использование исключительно многофункциональных и удобных предметов интерьера, которые не занимают много места, причем предпочтение отдается трансформерам, представленным диванами-кроватями, раскладным столом или барной стойкой, которая используется для зонирования, готовки и принятия пищи;
- хай-тек, включающий большое количество современных бытовых приборов, а также комната оформляется в сером цвете, что обеспечивает визуальное расширение пространства;
- лофт позволяет пользоваться грубыми и необычными отделочными материалами, а также в нестандартной планировке однокомнатной квартиры 33 кв.
м. легко применять разные способы зонирования.
Допускается пользоваться для квартиры стилем модерн или кантри. Для помещения в 33 кв. м. не подходят классические направления в дизайне, поскольку для обустройства придется покупать большое количество громоздких и роскошных предметов интерьера.
Правила обустройства отдельных зон
Квартира-студия 33 кв. метра будет комфортной и привлекательной, если в ней будет продумана каждая деталь. Поэтому рекомендуется сначала сделать дизайн-проект, а только после этого приобретаются материалы для отделки.
С помощью зонирования можно выделить несколько комнат, каждая из которых обладает своим предназначением. Для этого можно изменить
Гостиная
Этой зоне уделяется много внимания, поскольку она предназначена для приема гостей.
Поэтому при создании новой планировки квартиры 33 кв. м. учитываются рекомендации:
- зал обязательно отделяется от спальной зоны, для чего можно пользоваться стеллажом, карнизом со шторкой или легкой и переносной межкомнатной перегородкой;
- чтобы в квартире 33 кв. м. с 1 комнатой было комфортно, рекомендуется выделить для зала как можно больше пространства, поэтому в спальне устанавливается не обычная кровать, а диван-трансформер;
- гостиная включает в себя диван, стойку под телевизор и стеллаж для книг, а также нередко приобретается шкаф-купе;
- чтобы комната 33 кв. м. смотрелась более просторно и интересно, верхняя часть мебели отделывается с помощью зеркал.
Ниже находятся оригинальные фото планировки квартиры 33 квадратных метра, причем здесь особое внимание уделяется гостиной.
Во время выбора мебели предпочтение отдается предметам, выполненным в светлых оттенках.
Это позволяет не только визуально расширить пространство, но и создается атмосфера, способствующая комфортному отдыху и расслаблению. Нельзя загромождать пространство большим количеством мебели, так как комната будет казаться узкой и некрасивой.
Кухня
Данная зона считается важной в дизайне студии 33 кв. м. Обычно она используется не только для готовки, но и в качестве столовой. При отделке этого сегмента учитываются рекомендации:
- выбираются светлые отделочные материалы и мебель, что обеспечивает визуальное расширение пространства;
- покупается гарнитур с глянцевыми фасадами, которые позволяют получить привлекательный лакированный блеск;
- не рекомендуется в дизайне кухни пользоваться закрытыми навесными полками;
- на кухне много внимания уделяется качественному освещению рабочей зоны, для чего применяются точечные светильники, встраиваемая подсветка и светодиодная лента.
Если не получается самостоятельно разделить пространство на зоны или выбрать оптимальный дизайн, то можно воспользоваться популярными идеями для однокомнатной квартиры 33 кв.
м. Обеденная часть может находиться не только на кухне, но и в гостиной.
Прихожая
Перед тем, как обставить однокомнатную квартиру 33 кв. м. важно выделить немного пространства для коридора. Данная зона обладает минимальной площадью, причем для комфортного использования можно купить небольшую вешалку и пуфик. При наличии места устанавливается маленькая тумба для хранения обуви.
В однокомнатной квартире 33 кв. м. актуально для обустройства прихожей пользоваться светлыми отделочными материалами, а также выбирать мебель с зеркалами.
Санузел
Поскольку комната обладает небольшим размером, то выбирается душевая кабинка, которая отличается не только компактностью, но и комфортом применения. В таком интерьере можно установить стиральную машинку или мебель для хранения бытовой химии и грязной одежды.
Вместо стандартной модели унитаза можно выбрать навесные варианты, которые не только привлекательны, но и делают дизайн легким и воздушным.
Сверху вешается небольшая тумба, оснащенная полками.
Выбор мебели
В дизайне маленькой квартиры 33 кв. м. не получится пользоваться крупногабаритными предметами интерьера. Поэтому покупаются компактные модели, отличающиеся повышенной многофункциональностью. Нередко традиционная мебель не вписывается в выбранный стиль, поэтому придется покупать изделия на заказ. По имеющимся размерам легко подобрать встраиваемые изделия, чтобы рационально использовать ограниченное пространство.
На кухне не нужно устанавливать полноценный гарнитур, поэтому он заменяется небольшими тумбами и навесными шкафчиками. Можно воспользоваться трансформерами или подвесными полками. В качестве рабочей поверхности идеально подходит столешница на барной стойке.
Заключение
Для квартиры 33 кв. м. не получится воспользоваться стандартной планировкой, поэтому необходимо пользоваться оригинальными приемами зонирования и покупать функциональную мебель.
Целесообразно разбивать пространство на несколько сегментов и использовать светлую цветовую палитру. Каждая зона отделяется от других с помощью осветительных приборов, отделочных материалов или переносных перегородок.
Идеи для небольших квартир площадью менее 50 квадратных метров
Нравится Архитектура и дизайн интерьера? Следуйте за нами…
- Подписаться
Эти три тура по небольшим квартирам иллюстрируют три совершенно разных способа творческого использования ограниченного жилого пространства площадью менее 50 квадратных метров. Первый тур готов показать, как можно создать супер стильное пространство с ограниченным бюджетом, со спальней со стеклянными стенами и удивительным объемом хранения. Тур номер два — это заполненная соснами картина сделанной на заказ мебели и уникальных приподнятых смотровых площадок, которые увеличивают площадь в квадратных футах.
Наконец, мы познакомимся с элитным интерьером на крошечной площади, в котором все еще удается втиснуть двойное рабочее пространство, спальню со стеклянной стеной и шикарную маленькую ванную комнату с множеством ниш для хранения.
- 1 |
- Дизайнер: N.Team Design
- Визуализатор: N.Team Design
- 2 | №
- 3 |

- 4 |
- 5 |
- 6 |
- 7 |
- 8 |
- 10 |
- 11 |

- 12 |
- 13 |
- Архитектор: A6A
- 14 |
- 15 |
- 16 |
- 18 |
Дополнительная высота потолка, обеспечиваемая карнизами, способствует созданию двухслойной конструкции, в которой платформы поверх глубоких объемов хранения увеличивают площадь небольшой квартиры до оптимизированных 50 квадратных метров. Платформы также обеспечивают доступ к представлению.- 19 |
- 20 |
- 21 |
- 22 |
- 23 |
Один скрывает холодильник, а другой ванную комнату.- 24 |
- 25 |
- 26 |
- 27 |
- 28 |
- 29 |
- Дизайнер: Тёма Атсоне
- Визуализатор: Тёма Атсоне
- 30 |
Его обивка варьируется между различными оттенками серого, чтобы разрушить его визуальную массу.- 31 |
- 32 |
- 33 |
- 35 |
- 36 |
- 37 |
Деревянные ящики подчеркивают рабочие столы под каждым из компьютерных мониторов по обеим сторонам рабочего пространства.- 38 |
- 39 |
- 40 |
Рекомендуем прочитать:
Маленькие и стильные: четыре дома площадью менее 50 квадратных метров
50 великолепных маленьких кухонь
Понравилась ли вам эта статья?
Поделитесь им в любой из перечисленных ниже социальных сетей, чтобы отдать нам свой голос. Ваш отзыв помогает нам совершенствоваться.
Воплотите дом своей мечты в реальность
Узнайте, как
X
STUDIO 33, Шабац – обновленные цены 2023 года
Перейти к основному содержанию- Apartment info & price
- Facilities
- House rules
- Guest reviews (25)
Entire apartment
Kitchen
City view
Pets allowed
Free WiFi
Terrace
Balcony
Free parking
Кондиционер
Вы имеете право на скидку Genius в STUDIO 33! Чтобы сэкономить на этом объекте размещения, все, что вам нужно сделать, это войти в систему.
Апартаменты STUDIO 33 с террасой расположены в городе Шабац. К услугам гостей бесплатный Wi-Fi и вид на город. Апартаменты с кондиционером и балконом.
В этих апартаментах есть 1 спальня, кухня с холодильником и плитой, телевизор с плоским экраном, гостиный уголок и 1 ванная комната с душем. В квартире есть полотенца и постельное белье.
Ближайший аэропорт Белград Никола Тесла находится в 74 км от апартаментов. За дополнительную плату организуется трансфер от/до аэропорта.
Парам особенно нравится расположение — они оценили его как 10 для поездки вдвоем.
STUDIO 33: гостей Booking.com здесь принимают с 26 сентября 2022 года.
Расстояние в описании недвижимости рассчитывается с использованием © OpenStreetMap.
Показать больше
Самые популярные услуги
Бесплатная парковка
Бесплатный Wi-Fi
Семейные номера
Трансфер от/до аэропорта
Особенности недвижимости
Лучшее расположение: высокие оценки недавних гостей (9,8)
Бесплатная парковка!
Выберите даты, чтобы узнать о наличии и ценах этого объекта
Тип размещения
Sleeps
Квартира с одной спальней
Спальня:
1 Двойная кровать
Гостиная:
1 SOFA
9005 9005 9005 9005 9005 9005 9005 9005 9005 9005 9005 9005 9005 9005 9005 9005 9005 9005 9005 9005 9005 9005 9005 9005 9005 9005 9005 9005 9005 9005 9005 9005 9005 9005 9005 9005 9005 9005 9005 9005.
Пожалуйста, повторите попытку позже.Информация о хозяине
9.7
Оценка хозяина
Здание расположено в жилом районе недалеко от центра города. В них легко получить доступ к содержимому, которое может понадобиться во время короткого пребывания в Шабаце. В здании есть лифт, оно находится на шестом этаже здания, откуда открывается прекрасный вид на панораму города. Терраса просторная, подходящая для отдыха и наслаждения.
Всего в 50 метрах от здания находится городской стадион, ТЦ Рода, кафе с игровой комнатой для детей, мясная лавка, пекарня, больница и несколько небольших рынков. Кроме того, здание находится в комплексе Тркалилиште с несколькими гектарами зеленых насаждений, детской игровой площадкой, а также беговыми и рекреационными дорожками. Центр города и городская площадь находятся на расстоянии 1 км и 5 минут ходьбы.
Здесь говорят на этих языках: английский, хорватский, сербский
Окрестности *
Удобства STUDIO 33
Отличные удобства! Оценка по отзывам, 9.
7
Самые популярные услуги
Бесплатная парковка
Бесплатный Wi-Fi
Семейные номера
Трансфер от/до аэропорта
Парковка
Бесплатная общественная парковка поблизости (предварительный заказ не требуется).
Интернет
Wi-Fi предоставляется в номерах бесплатно.
Кухня
Обеденный стол
Cleaning products
Stovetop
Kitchenware
Kitchen
Refrigerator
Kitchenette
Bedroom
Wardrobe or closet
Bathroom
Туалетная бумага
Полотенца
Ванна или душ
Туалет
Free toiletries
Hairdryer
Shower
Living Area
Seating Area
Media & Technology
Flat-screen TV
Cable channels
Удобства в номере
Домашние животные разрешены.
Никаких дополнительных сборов.
Доступность
Снаружи
Садовая мебель
Outdoor dining area
Sun terrace
Balcony
Terrace
Food & Drink
Grocery deliveries
Additional charge
Outdoor & View
Вид на город
Характеристики здания
Транспорт
Трансфер до аэропорта
Доплата
Reception services
Cleaning services
Daily housekeeping
Additional charge
Ironing service
Additional charge
Dry cleaning
Additional charge
Laundry
Additional charge
Разное
Кондиционер
Отопление
Soundproof rooms
Family rooms
Safety & security
Fire extinguishers
Safety deposit box
Languages spoken
English
Croatian
Сербский
Домашние правила
STUDIO 33 принимает особые пожелания — добавьте их на следующем шаге!
Регистрироваться
12:00 — 18:00
Проверить
08:00 — 10:00
Отмена/
предоплата
Правила отмены бронирования и предоплаты зависят от типа апартаментов.