Совмещенный санузел 4 кв м – Дизайн ванной комнаты 4 кв.м со Стиральной машиной и туалетом
Интерьер ванной комнаты 4 кв м — отдельной и с туалетом (30 фото)
Многие сталкиваются с проблемой маленького санузла в своих квартирах. Планируя ремонт, лучше обдумать проект комнаты досконально. Таким образом, получится использовать доступную площадь по максимуму грамотно, распределив предметы и сантехнику правильно. Интерьер ванной комнаты 4 кв.м. необходимо сделать не только красивым: не менее важно удобство.
Фото реализованных проектов доказывают, что из маленького помещения можно организовать комфортное пространство.

1. Ванная без туалета

Если планируется раздельный санузел, в таком случае дизайн не предусматривает на площади 4 кв. м наличие унитаза. Основные предметы для наполнения помещения в данном случае – это ванна либо душевая кабина, шкафчики, раковина, стиральная машина, корзина для белья.
Оптимальный вариант для отделки маленького помещения – светлые оттенки плитки.
Для того, чтобы пространство смотрелось гармонично, декор на экране ванной должен соответствовать общей стилевой концепции.
Отдельное внимание нужно уделить освещению. Точечные светильники подходят для организации равномерного освещения в пространстве санузла.

Разводку водопровода лучше скрыть за декоративной панелью, либо конструкцией из ГКЛ, которую оформляют кафелем, оставляя в коробе люк для ревизии. Так дизайн комнаты будет выдержан в едином стиле.
Угловая модель ванны способствует компактному заполнению помещения предметами. Среди существующих вариантов, подобное расположение считается одним из самых удачных.


Размещая сантехнику строго по форме помещения, некоторые углы остаются не задействованы, выпадая из общей схемы. С помощью угловой сантехники можно сэкономить площадь при расстановке предметов.
Внимательно спланируйте расположение шкафов в объеме ванной комнаты. Над раковиной можно установить полочки для размещения гигиенических средств. Пространство под умывальником также стоит задействовать, организовав вместительную тумбу.
Установленная под умывальником тумба экономит место в санузле.
При наличии свободного места под ванной, многие используют его для хранения. Предварительно нужно соорудить раздвижной экран, либо ящики.

Отличным решением является декоративное оформление экрана, которое сочетают с дизайном керамической плитки.


2. Совмещенный санузел

Совмещенный санузел 4 кв. м усложняет задачи планировки, поскольку для монтажа унитаза нужен дополнительный кв. м площади.
Следует учитывать следующие нормативы: расстояние между стеной и унитазом должно быть не менее 150-250 мм.
Главный принцип дизайна небольшого помещения — каждый кв. м должен быть задействован. Пространство под ванной можно использовать в качестве дополнительного шкафа.
Чтобы расходовать площадь комнаты экономно, выбирайте небольшую сантехнику и мебель.



Если отдать предпочтение душевой кабине, в таком случае санузел 4 кв. м можно дополнить биде.
Душевая кабина в совмещенном санузле способствует компактной планировке необходимых предметов и сантехники.



Различные сценарии подсветки позволяют интересно оформить помещение. Таким образом, можно создать именно ту атмосферу, которая соответствует настроению.

Используйте альтернативные способы при заполнении помещения предметами: стиральную машину небольших габаритов, угловые модели душевых кабин, унитазов, ванн, специальные крепления для размещения сантехники на стене, компактные подвесные шкафы.
Маленькая стиральная машина в санузле 4 кв. м.


Открывание двери лучше направить в сторону коридора.
Подвесной вариант мебели позволяет сформировать полноценное пространство, при этом оставляя ощущения легкости на 4 кв. м.

При условии правильного обустройства комнаты, дальнейшая эксплуатация будет по максимуму комфортной.

v-vannoy.com
самые модные новинки текущего сезона (55 фото)
Наследием эпохи Советского Союза стали туалеты и ванные маленьких размеров. Способом расширить пространство является совмещение туалета и ванной в одной комнатке.

Самый распространенный вариант совмещенного санузла расположен на площади в 4 кв. м. Но и на таком небольшом участке можно распределить самые необходимые детали для этих комнат.

Для этого нужно только рационально использовать пространство. Можно сделать оригинальный дизайн маленького туалета, тогда такое помещение будет радовать глаз.

Многие современные конструкции сантехники позволяют сэкономить свободное место, сохранив функциональность и привлекательный внешний вид. Это достигается их компактностью. Изучить возможные варианты можно, посмотрев фото туалета 4 кв. м.

Способы распланировать санузел
Есть несколько вариантов распланировать совмещенный санузел. От планировки зависит, прежде всего, размещение в этой комнате различных предметов. А также это определит возможность делать капитальный или косметический ремонт в туалете размером 4 кв. м.

Так, в длинной и узкой комнате в торце помещения оптимальнее расположить ванну или душ, а унитаз и умывальник – возле более длинной стенки.
Если поставить их рядом, то противоположная стенка останется свободной. Благодаря этому комната не будет загромождена, по ней можно будет свободно перемещаться.

Однако, если комната выполнена в форме квадрата, появляются дополнительные варианты. Например, ванну и умывальник расположить в одном углу, душ, унитаз, машинку-автомат – в другом.

Только нужно учитывать, что не нужно располагать унитаз у стенки, противоположной двери. Лучше сместить его к одной из боковых стенок.

Следует отметить, что наличие ванной в санузле совсем не обязательно. Ванна занимает много места, поэтому удобнее установить вместо неё душ. А освободившееся место можно занять шкафчиком для принадлежностей и стиральной машинкой-автоматом. Таким образом, интерьер туалета 4 кв. м. нужно хорошо продумать.

Душевая кабинка: совмещенный санузел
Маленькая площадь комнаты обуславливает необходимость экономии свободного пространства. А лучшим вариантом для этого станет совмещение душа и унитаза.

При этом лучше приобретать душевые кабины, которые не будут занимать много места. Это кабинки в форме прямоугольника либо угловой конструкции. Недостатком этого варианта будет достаточно высокая цена. Однако этот вариант потребители приобретают чаще всего.

Следует отметить, что сделать душевую кабинку можно и своими руками. Потребуются только затраты на приобретение подходящего поддона, а также размещение сверху или сбоку специального смесителя и других элементов для душа.

Далее самостоятельно устанавливаем, например, стеклянную панель. Матовая поверхность обеспечит минимальную видимость. Прозрачное же стекло поможет зрительно расширить свободное пространство.

Угловая конструкция кабинки – довольно удобный вариант, который позволит оставить рядом свободное место для машинки-автомата, умывальника или унитаза.

Оставляйте небольшой промежуток между предметами в санузле, иначе комната будет казаться нагроможденной.

Ванна: совмещенный санузел
Туалет, совмещенный с ванной – также довольно неплохой вариант. Если решили установить в санузле ванну, лучше всего поставить её вдоль дальней либо самой короткой стенки. А все остальное располагайте вдоль других стен.


Оригинальность и изысканность комнате добавит необычная ассиметричная форма ванны.

Установка стиральной машины
Машинку-автомат удобнее ставить в санузле. Как правило, данная техника не занимает много места, однако её нужно ставить рядом с коммуникацией. Например, возле душа либо под умывальник.

Некоторые рекомендации
Полезная в санузле вещь – встроенная система слива, которой оснащается унитаз. Такая система встраивается в стенку и совсем не занимает место. Можно использовать и унитаз угловой формы. Помимо удобства такой вариант станет и оригинальным дизайнерским решением.

Свободное место можно занять полками. Нужно только расположить их на удобной высоте, чтобы не задевать при перемещении по комнате.

Есть варианты умывальников, оснащенных тумбочкой. В ней можно держать разные бытовые предметы, а также с её помощью коммуникации будут скрыты.

Зеркало в санузле обычно располагают возле умывальника. По бокам можно повесить светильник, так комната будет выглядеть больше и светлее.

Фото идей как оформить туалет 4 кв. м.































Также рекомендуем посетить:
strojka-gid.ru
Дизайн ванной комнаты 4 кв м: фото совмещенного санузла
Это уже счастье, если размеры ванной достигают четырех квадратных метров, как в домах серии И-155. Целых четыре квадрата позволяют установить в помещении все необходимое для полноценных гигиенических процедур и создать дизайн ванной комнаты 4 кв.м современным и стильным.

Гораздо хуже обстоят дела, когда туалет всего один метр, а ванная немногим больше — тогда требуется совмещение. Идеи для эргономичного и функционального дизайна!

Вы готовы увеличить гигиеническую комнату?
Не стоит пренебрегать правилами оформления маленького помещения: от их соблюдения зависит, будет ли интерьер санузла 4 кв.м элегантным и просторным или останется всего лишь небольшой комнаткой.

Запоминайте:
- Использовать в интерьере минимальное количество мебели, а в случае с ванной — только самую необходимую.
- Светлые оттенки визуально увеличивают помещение.
- Стеклянные полки и экраны для душа создают иллюзию легкости.
- Зеркала в ванной не только уместны, но и зрительно увеличат ее скромные размеры. Однако их нужно интегрировать в интерьер осторожно, если вы не хотите принимать душ в зеркальном «лабиринте».
- Затемненные участки в санузле не приемлемы! Несколько источников освещения на разных уровнях обеспечат идеальное освещение помещения.
Мебельная «чехарда» или «переполох» с сантехникой
Пройдемся по всем пунктам! Вы согласны, что шкафчики с полками, стеллажи, лавки для сидения в небольшой ванне поставить некуда? Но система хранения нужна: пусть и минимальная! Вот почему перед тем, как начать ремонт санузла, надо предусмотреть все нюансы: размеры будущей сантехники, выбор облицовочного материала и что вы собираетесь внедрять из мебели.
Некоторые ванную используют исключительно для водных процедур! То есть, кроме ванны там практически ничего нет, если не считать полотенцедержателя, крана, душа и зеркала.
В основном же в ванную «впихивают» все, что положено в этой комнате: раковину, стиральную машину и резервуар для мытья. Все это спокойно вместится, если с умом использовать каждый квадратный сантиметр: ванну заменить душевой, а в оставшемся пространстве поставить стеллаж или узкий шкафчик. Можно туда определить стеклянные прозрачные полки — это и функционально, и не загромождает угол.
Установив раковину небольших размеров и машину-автомат под единую столешницу, вы решите две проблемы сразу: где мыть руки и где стирать белье.
Наличие унитаза в ванной усложняет задачу эргономичности, но не слишком! Подвесная модель успешно справится с ней: смотрится не так громоздко, как обычный унитаз, сливной бачок можно спрятать в стену, специально нарощенную для этих целей. Кстати, ниши или полки в ее полости послужат местом для аксессуаров, чистящих средств или туалетной бумаги. Таким образом, можно сэкономить на шкафчике под раковиной и определить под нее корзину для белья.
Желтый, белый, голубой: выбрать в ванную какой?
Что касается цвета, то благодаря правильному его решению помещение можно удлинить, расширить, сузить и уменьшить. А нам надо что? Правильно — увеличить небольшую комнату хотя бы визуально. Гарантированно с этим справится белый цвет. Но просто белый — это скучно и неинтересно, когда есть простой способ «разбавить» его.

Например, в белоснежной ванне разложить яркие атрибуты: коврик, полотенца, дозаторы одного-двух цветов. Если вы предполагаете облицевать стены кафелем, то сделайте бордюр из цветной плитки, цветную нишу в душевой, в одной из стен используйте контрастный цвет.

Заходя в ванную, ваш взгляд «упирается» в душевую? Тогда закажите мастеру, чтобы он выложил из кафеля красивый геометрический рисунок. Это первое, на что вы будете всегда обращать внимание. Вообще, несколько цветных акцентов отвлекают от размеров помещения, поэтому рекомендуем воспользоваться этим советом. На геометрии можно построить интерьер ванной 4 кв.м. — и фото это доказывает.
Не хотите белую ванную, сделайте ее голубой или бирюзовой. Традиционно сложилось, что цвета воды более всего подходят для оформления гигиенического помещения. Но и от ярких красок не надо отказываться: подойдет бежевый, желтый, оранжевый, зеленый, сиреневый.

При умелом использовании даже черный, «съедающий» пространство своей мрачностью, может сделать дизайн совмещенного санузла шедевром интерьеров. Вот лишь несколько примеров: черная сантехника в белом помещении, черные окантовки или рисунки на светлых стенах, полы в черно-белую клетку по диагонали. Очень стильно смотрится пиксельная мозаика черно-бело-серая, но ее добавляют в интерьер дозировано, иначе будет рябить в глазах.
«Одежда» для ванной
Каким материалом облицевать стены? Первый и правильный вариант, который приходит на ум — кафель. Он удобен и функционален по всем параметрам: не боится воды и температурных перепадов, долго служит, предполагает большой выбор цветов, имеет глянцевую поверхность, что очень актуально для небольшой комнаты.

Второй по функциональности материал, подходящий для ванны — мозаика. Она мелкая, и ее используют для облицовки выступов стены или закругленных поверхностей. Из нее создают интересные рисунки, «панно» или обрамления.
Керамогранит в этом плане «проигрывает», однако внушительные размеры плитки позволяют в короткие сроки облицевать санузел. Его используют фрагментарно: в зоне унитаза или под потолком, то есть там, где меньше влаги.

Окрашивание водостойкой штукатуркой обходится дешево, и многие ее используют, потому что в любой момент стены легко перекрасить.
Виниловые обои тоже позволяют быстро сменить интерьер. Где подвох? Очевидно, что в ванной рабочими зонами является душевая и раковина для мытья рук, для которых характерны перепады температуры и большая влажность, поэтому использование в этих местах обоев и штукатурки нецелесообразно.
Как мы уже говорили выше, вместо ванны логичнее устроить душевую. Ее закрывают специальным экраном, перегородкой или принимают душ за матерчатой шторкой. Какой из вариантов предпочтительней — выбирать только вам. Так, шторку легко отодвигать, но она довольно быстро загрязняется.
Перегородка разделит интерьер на зоны, и это будет смотреться эффектно. Перегородки могут быть снабжены полками с внешней и внутренней стороны душевой, представлять собой монолитную стенку до потолка или до середины высоты, чтобы не скрадывать пространство.
3 подсказки, чтобы сделать дизайн санузла 4 м безупречным
- Чтобы облегчить интерьер, используют стеклянные конструкции: в ванной это перегородки, экран душевой, видимые полки, столешница, куда вмонтирована раковина для рук. Но слишком много стеклянных поверхностей создадут иллюзию хрупкости и породят страх что-нибудь случайно разбить.
- Другим предметом с отражающей поверхностью, уместным в ванной комнате, является зеркало. Интересно, что оно обладает способностью в несколько раз увеличить пространство, но именно из-за этого свойства его нельзя вкраплять в 4 м дизайн в большом количестве. Достаточно, чтобы одно зеркало висело над раковиной или поставить шкафчик с зеркальными дверцами. Интегрировать зеркало над ванной или в душевой — хорошая затея. Это может быть как большой четырехугольный монолит во всю стену, так и несколько маленьких зеркал-сфер вокруг большого круглого зеркала. Но помните: в ванной зеркало должно быть идеально чистым!
- Подсветка зеркал создаст ощущение, что комната светла и просторна. В 4 кв.м одной верхней лампы будет явно не хватать, чтобы осветить все поверхности и уголки. Поэтому источников освещения должно быть два или три: точечные светильники на потолке, настенные бра у зеркала, лампа в зоне совмещенного санузла 4 м, расположенного за декоративной перегородкой.
Что обязательно надо учитывать в выборе осветительных приборов? Они будут располагаться в зоне повышенной влажности. А, значит, потребуется монтаж, совмещающий соблюдение всех правил проведения электропроводки в таких помещениях. Так, вы готовы до неузнаваемости изменить дизайн ванной 4 кв.м?
artpro100.ru
Дизайн интерьера ванной 4 кв. м.
Эпоха тотальной застройки городов хрущевками решила жилищные проблемы большинства граждан страны, и до сих пор множество людей живет в тесных квартирах, где пол совмещен с потолком, а туалет с ванной комнатой.

Однако, теснота не означает, что в ней нельзя сделать что-то не только практичное, но и красивое.

Планировка ванной комнаты 4 кв. м.
В зависимости от особенностей расположения входной двери и размеров самой ванной комнаты планировка ее может быть различной.

Иногда в нее вполне могут поместиться обязательные элементы: стандартная ванна, унитаз и раковина.
В некоторых случаях имеет смысл отказаться от полно размерной ванны в пользу сидячей, или вовсе заменить ее душевой кабиной и освободить место для стиральной машины или шкафа для полотенец и прочих гигиенических принадлежностей.

Важно не забывать, что стандартная планировка, предусмотренная при строительстве дома, не является единственно верным вариантом, и вы всегда можете переоборудовать комнату по своему усмотрению.
Не нужно спешить с выбором сантехники и мебели, ведь главное – подобрать их в точном соответствии с вашей будущей задумкой.

В условиях ограниченного пространства важно использовать каждый свободный уголок, причем сделать это так, чтобы зрительно не загромождать пространство.

Например, делать наддверным проемом закрытый короб нецелесообразно, а открытая полка будет очень к месту. Главное, не загромождать ее как попало, а оформить, например, декоративными корзинами, куда уже сложить все необходимое.

Интерьер в строгом стиле
Маленькая ванная комната шикарно будет смотреться в современном стиле, который предполагает сдержанный декор и строгие геометрические линии.

Пол оттенков графита идеально сочетается с коричневым деревом, которым можно оформить стены и сантехнику.

Глянцевые поверхности отражают свет и зрительно расширяют пространство, а декоративные элементы из стекла и натурального камня придадут помещению нотку роскоши.

Маленькая ванная комната 4 кв. м. с унитазом
Вопреки распространённому мнению, что унитаз загромождает и без того тесное помещение, его можно весьма органично вписать в ванную комнату. Здесь уместнее всего будет сделать инсталляцию, которая предполагает укрывание бачка унитаза за стенными панелями.

Само сидение унитаза лучше выбирать то, которое крепится к стене и не опирается на пол при помощи ножки. Такой прием придаст всему помещению в целом легкости и зрительно его увеличит.

Зеркала расширяют пространство, поэтому важно использовать их не только по прямому назначению, например, повесив над раковиной, но и включить в дизайн зеркальные элементы.

Маленькая ванная комната с туалетом и стиральной машинкой
Если стиральную машину невозможно установить в другом помещении квартиры, ее можно органично вписать в дизайн ванной комнаты. Возможно, в этом случае придется отказаться от раковины, ведь ее функцию может выполнять ванна.

Обратите внимание на вариант планировки, в котором стиральная машина устанавливается под раковину вместо тумбы.

Спрятав стиральную машину за декоративными панелями светлых тонов, вы уравновесите пространство, и оно не будет выглядеть перегруженным.

Дизайн ванной комнаты 4 кв. м. в эко-стиле
Отличный вариант оформления маленькой комнаты – эко-стиль. Основной цвет, с которым будут сочетаться все остальные – бежевый и все его светлые оттенки.

Сюда прекрасно впишутся натуральные фактуры: камень, дерево, натуральные некрашеные ткани. Кафель с мотивами растений и деревьев усилит приближенность интерьера к природе.

Места для хранения лучше скрывать не стационарными панелями, а легкой тканью, таким же образом можно легко спрятать стиральную машинку.

Раковина отлично смотрится на подвесной консоли из натурального дерева, декор предпочтительно зеленый, хорошо будут смотреться горшки с искусственной травой или букет цветов в прозрачной вазе.

Ванная комната 4 кв. м. в классическом стиле
Дизайнеры рекомендуют обладателям ванной комнаты небольшого размера обратить внимание на оформление интерьера в классическом стиле.

Сюда вполне по силам вписать ванну на кованых ножках, имитирующих львиные лапы, обилие кованых элементов, например, крючки для полотенец, рама зеркала, разноцветная мозаичная плитка на полу и на стенах создадут атмосферу барокко и придадут роскоши даже маленькой комнате.

Ванная комната небольшого размера допускает сочетание различных стилей, ее можно оформить в оттенках одного цвета, например, в спокойных коричневых тонах, который градиентом от темного к светлому будет подниматься от пола к потолку.

Можно выбрать цвет, который будет первой скрипкой задавать цветовую гамму и перекликаться с аксессуарами. Главное правило, комнату лучше не оформлять в темном цвете, потому что он скрадывает и без того ограниченное пространство.

Помните, что оригинально оформить можно абсолютно любое помещение, нужно лишь предварительно изучить опыт тех, кому уже удалось это сделать.

Фото дизайна интерьера ванной 4 кв. м.







































dizajninterer.ru
Красивый дизайн совмещенного санузла — как спланировать ванную и туалет вместе

Создать красивый дизайн совмещенного санузла не так просто, как кажется на первый взгляд. Учитывая, что помещение будет выполнять минимум две функции — ванной комнаты и туалета (не говоря уже о постирочной), придётся продумать планировку и функциональное наполнение каждого сантиметра.
Ежедневно мы посещаем санузел по несколько раз: собираемся на работу, приводим себя в порядок перед важными мероприятиями, готовимся вечером ко сну. Как объединить ванную с туалетом, чтобы в помещении было комфортно находиться и принимать все гигиенические процедуры?
Плюсы и минусы ванной, объединённой с туалетом
Как говорят, сколько людей – столько и мнений. Для одних объединение двух влажных комнат является необходимостью сэкономить несколько драгоценных сантиметров, для других — нерушимый запрет, имеющий под собой немало оснований. Но, как ни странно, решить, стоит ли объединять ванную с туалетом, можно лишь разобрав все достоинства и недостатки такого планировочного решения.
Основной минус совмещенного санузла для многих — невозможность для большой семьи пользоваться одновременно туалетом и ванной. Хотя найдутся жильцы, которых такое ограничение вовсе не смущает. Тем более, что разграничить функциональные зоны можно мобильными перегородками и шторками.


Конечно, этот недостаток может смутить многих пользователей, которые и даже не будут рассматривать достоинства такого объединения. А вот мы об этом и поговорим.
Одним из преимуществ совмещенного санузла можно назвать увеличение полезной площади гигиенической комнаты за счёт сноса перегородки. Ведь, она занимает достаточно места. А эту стену ещё и отделать, и задекорировать нужно — вот вам ещё плюс (экономия на отделочных материалах).
Второе по значимости преимущество — это психологическая составляющая. Человеку свойственно воспринимать просторные помещения как более комфортные и элитные. Да и напрягаться с вопросом о декоре маленькой комнатушки не придётся, так как подобрать стилевое направление для просторного санузла намного легче.
В типовых квартирах чаще всего ванная и туалет раздельные, но планировка маленького санузла оставляет желать лучшего: в туалете коленки упираются в дверь, а в ванной некуда поставить стиральную машину… Вот и задумываются многие про объединение двух комнат. Конечно, любую перепланировку придется узаконить: заказать проект, побегать по инстанциям, собрать разрешения и подписи. Но полученный результат того стоит.


Планировка совмещённого санузла
Если говорить про квартиры в хрущевках или сталинках, то даже после перепланировки вряд ли удастся получить большое помещение, но мы постараемся рассмотреть варианты планировок для санузлов площадью от 3 до 5 кв. метров. В квартирах улучшенной планировки, как правило, можно рассчитывать на площадь от 5 квадратных метров, что дает огромную возможность для полета фантазии в плане оформления и дизайна.
Планировка санузла 3 м2
Гармоничную обстановку и функциональный интерьер маленькой ванной, объединенной с туалетом, можно получить, лишь грамотно спланировав каждый сантиметр пространства. Конечно, обставить 3 метра — это не то же самое, что колдовать над одним метровым туалетом, но и в эту крохотную комнатушку придется впихнуть все самое необходимое: раковину, унитаз, ванну или душевую кабинку, по возможности стиральную машину и места для хранения. Если хочется получить что-то побольше, нужно что-то другое сделать поменьше, но не в ущерб функционалу.
Ниже приведем несколько планировочных решений для ванной комнаты вместе с туалетом площадью около 3 кв.метров. Обратите внимание, что комната может быть как квадратной, так и прямоугольной или трапециевидной. Габариты каждой из стен колеблются от 1,2 кв.метров до 2,5. Длинная сторона может находиться как напротив двери, так и соприкасаться с ней.

И в первом, и во втором варианте на площади 3 метра уместились все необходимые предметы для осуществления гигиенических процедур. Ванна или душевая кабина — это личный выбор каждого. Чаще всего владельцы предпочитают поставить маленькую, но полноценную ванну. Душевая кабина открывает больше возможностей в плане размещения дополнительных предметов, например, стиральной машины или увеличения мест хранения.
Совет: отдельно стоящие душевые кабины уже давно вышли из моды, а вот строительный поддон, оборудованный трапом и стеклянными дверцами — довольно популярное решение у современных дизайнеров.
Визуально увеличить площадь помещения помогут пастельные тона и коммуникации, спрятанные в стену.


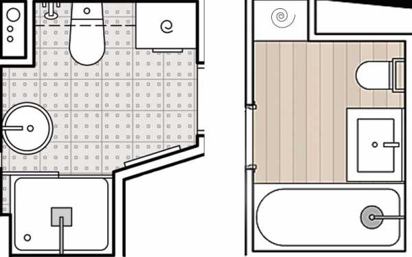
Планировка санузла 4 кв.метра
Достаточно часто встречается именно такая площадь совмещенного санузла. Такие габариты позволяют вместить полноценную ванну и даже компактную стиральную машину, разместить которую можно как под раковиной, так и в отдельно отведенной постирочной зоне.


Обратите внимание: унитаз-инсталляция позволяет сэкономить место и сделает совмещенный санузел аккуратней. Современные встраиваемые системы слива достаточно удобны в обслуживании и не требуют частого ремонта.


Большинство дизайнеров предпочитают в своих проектах использовать предметы мебели, сделанные на заказ по их собственным эскизам. Такой подход гарантирует, что все компоненты в комнате найдут свое место и будет задействован каждый полезный сантиметр. Для ванной комнаты, которую совместили с туалетом, возможны такие решения, как столешница для раковины, отделанная плиткой или мозаикой, а также шкафы и полочки, сделанные по индивидуальным размерам. Под столешницу легко поместится корзина для белья или даже стиральная машина.
Учтите: если вы используете прозрачное стекло для душевой кабины, то помещение станет визуально меньше, но на нем будут видны капли от высохшей воды.


Планировка совмещенного санузла площадью 5-6 м2
В зависимости от формы помещения планировка совмещенного санузла площадью от 5 квадратных метров может быть нескольких типов: угловая, П-образная, линейная. Первые две применяются в квадратных комнатах, а линейная — это удел вытянутой ванной. В такой комнате уже можно поразмыслить не только об удобной, но и о красивой сантехнике, дизайнерских элементах и разграничении функциональных зон.
Так, для отделения туалета от самой ванной можно воспользоваться перегородкой с матовым стеклом или нишей-стеллажом из гипсокартона. Саму ванну можно выбирать полноразмерную, а не компактную. А стиральную машину ставить отдельно. Найдется место и для мест хранения, полотенцесушителя, корзины для белья. Ниже приведем примеры планировок, чтобы показать на примере, как обставить ванную комнату с туалетом на 5-6 квадратных метрах:







Какую сантехнику выбрать для совмещенного санузла
На психологическое восприятие интерьера влияет два фактора: цветовое оформление и расположение предметов мебели и сантехники. Про цвет мы поговорим позднее, а сейчас остановимся на тех нюансах, которые помогут выбрать сантехнику, подходящую по размеру и функционалу. В дизайне существуют определенные правила размещения и подбора предметов для конкретного интерьера.
- В маленьких гигиенических комнатах отдавайте предпочтение подвесным раковинам и унитазам, создающим парящий эффект и оставляющим под собой свободное место.
- При ремонте в ванной комнате обязательно замените все трубы и шланги, чтобы надолго забыть проблему протекших кранов.
- Если вы решили разместить стиральную машину под раковиной, выбирайте специальный «плоский» сифон.
- Самые износостойкие сантехнические приборы — из камня и композитного материала.
- При выборе унитаза обратите внимание на угол канализационной трубы.
- Значительно сэкономить место помогут угловые модели ванн, раковин и унитазов.
При выборе любого объекта в санузле придется отталкиваться от разведенных коммуникаций. Даже самый красивый интерьер совмещенного санузла может на практике оказаться весьма не функциональным и неудобным, который в дальнейшем потребует переделок.



Материалы для отделки
Качественные материалы для отделки помещения — непременное условие, чтобы получить красивый и стильный дизайн совмещенного санузла. Ванная комната — помещение с повышенной влажностью, и следовательно, отделка должна соответствовать требованиям износо- и влагостойкости. Тем более, что ванная, совмещенная с туалетом, вдвойне подвержена эксплуатационным нагрузкам. Следовательно, сэкономить вряд ли удастся.
Самым практичным материалом для ванной была и остается керамическая плитка или керамогранит, причем, как для стен, так и для пола.
Стены
Керамическая плитка — хоть и распространенное решение для ванной комнаты, но не единственное. Так, в целях сокращения бюджета на отделку можно прибегнуть к следующему: нижнюю часть всей комнаты, а также душевую зону обложить керамической плиткой или керамогранитом, а верхнюю — покрасить влагостойкой краской. Пластиковые панели — это из области суперэконом варианта, но о долговечности в этом случае речи не идет. И уж тем более не стоит использовать обои в ванной комнате, даже если они влагостойкие.
Что касается выбора оттенков, то цветовая палитра и широкий ассортимент текстуры облегчают выбор даже самого привередливого покупателя.
Пол
Полы в совмещенном санузле требуют еще более тщательного подхода. И не только с точки зрения отделки. Во-первых, во время ремонта стоит позаботиться о гидроизоляции и качественной стяжке. Возможно, принять решение о монтаже теплого пола (либо в саму стяжку, либо под плиточный клей).
Ну и вторым этапом — выбор напольного покрытия. Проверенными временем вариантами считаются керамическая плитка и искусственный камень. Линолеум, даже самый дорогой, относится к эконом-вариантам и прослужит меньше, чем самая простая плитка. И все же, если решитесь на покупку линолеума, то выбирайте не скользкое покрытие.
Потолок
Влажность и перепады температур — основные условия экс
sunrem.ru
Дизайн совмещенного санузла 4 кв.м
Маленькие туалет и ванная – это то, что досталось нам в наследство от советской эпохи. Немного увеличить пространство можно путем объединения этих двух помещений. Совмещенный санузел 4 кв. метра является самым распространенным размером. Несмотря на сравнительно небольшую площадь этого места достаточно для того, чтобы расставить в помещении все самое необходимое. Главное, правильно распорядиться имеющимся пространством.
На сегодняшний день ведущими компаниями мира изготавливается сантехника и бытовые приборы компактных размеров, позволяющие без труда разместить их в небольшом помещении, сделав его функциональным и достаточно привлекательным.
Варианты планировки

Существуют разные варианты планировки совмещенного санузла исходя из которых, и следует размещать в данном помещении предметы.
К примеру, если комната узкая и длинная, в торцевой части лучше всего расположить небольшую ванну или же душевой уголок. Унитаз с умывальником можно разместить вдоль длинной стены. Установив их рядом друг с другом и оставив противоположную сторону свободной, в помещении не будет эффекта нагромождения, комната визуально станет больше, при этом ничего не помешает беспрепятственному передвижению по ней.
Если же санузел имеет квадратную форму в таком случае вариантов планировки гораздо больше. Можно установить в одном углу ванну, рядом с ней умывальник, а в противоположной стороне душевую кабинку или стиральную машину и унитаз.
Главное, что следует знать при проектировании такого помещения – унитаз не должен быть размещен напротив двери, лучше его расположить вдоль одной из боковых стен.
Наибольшее место в совмещенном санузле всегда занимает ванна. Однако если ее заменить на компактную душевую кабинку в таком случае освободится место для стиральной машины или высокого вместительного шкафчика.
Совмещенный санузел с душевой кабиной

Совмещенный санузел с душевой кабинкой является одним из наиболее удобных для помещения с небольшой площадью. Чаще всего потребителями используются стандартные угловые или прямоугольные кабинки. Однако иногда достаточно сложно подобрать необходимый размер или цена такой кабинки слишком высока.
В таком случае душевой уголок можно сделать и самостоятельно. Для этого приобретается поддон необходимого размера, на стене или на потолке над ним вешается все необходимое для водных процедур оборудование, благо выбор сейчас достаточно широк, от самого простого, до изделий с массажными форсунками. От всего остального помещения душевой уголок отгораживают стеклянной панелью, она может быть матовой или прозрачной. Во втором варианте помещение будет выглядеть значительно больше, прозрачные перегородки визуально увеличивают пространство.
В случае если душевая кабинка имеет угловую форму, рядом с ней можно разметить стиральную машинку, умывальник или унитаз, все зависит от размера стены. Главное, чтобы между всей техникой был хотя бы небольшой зазор, чтобы не было нагромождения.
Совмещенный санузел с ванной

Если же при проектировании предусмотрен совмещенный санузел с ванной, ее лучшее месторасположение будет самая дальняя стена или самая короткая. Остальное оборудование может быть размещено на стенах, которые расположены перпендикулярно к стене с ванной.
При установке ванны вдоль самой короткой стены, длина изделия будет ограничена. В таком случае можно установить небольшое сидячее изделие, которое не займет много места. Если же стена чересчур мала, а ванну хочется приобрести стандартного размера, в таком случае на этом месте располагают умывальник и унитаз. Ванна же может быть размещена вдоль длинной стены.
Установив ассиметричную ванну, можно придать помещению оригинальный и изысканный вид. Такое изделие создаст иллюзию простора в помещении.
Совмещенный санузел со стиральной машиной

Достаточно часто в квартирах с небольшой ванной и туалетом площадь и других помещений достаточно мала, из-за чего для самой необходимой бытовой техники просто не остается места. В данном случае можно рассматривать совмещенный санузел со стиральной машиной.
Вариантов расположения такой техники на самом деле не очень много, так как стиральная машина требует близости с коммуникациями. Достаточно часто, такую технику располагают рядом с угловой душевой кабинкой. Однако такой вариант возможен только в случае, если в непосредственной близости есть свободное место.
Кроме этого, стиральную машину можно расположить под умывальником. Такое размещение позволяет существенно сэкономить площадь помещения. Основной задачей является выбор самого умывальника. Желательно, чтобы он имел прямоугольную форму, его края должны немного выходить за размеры машины, но никак не наоборот.
Полезные советы

Чтобы сэкономить площадь помещения можно выбрать унитаз со встроенной системой слива. Инсталляция монтируется в стену, на поверхности остается только кнопка. Кроме этого, существуют варианты угловых унитазов, которые не только не занимают много места, а еще и выглядят достаточно оригинально.
Освободившееся пространство можно использовать под полочки. Главное, правильно рассчитать их высоту, чтобы не биться головой.
Умывальник лучше всего выбирать вместе с тумбой, которая не только скроет коммуникации, а и может использоваться для хранения необходимых предметов. Важно, чтобы тумба не была чересчур массивной, иначе она зрительно уменьшит помещение.
Над умывальником следует расположить зеркало с боковыми светильниками. Это также способствует визуальному увеличению пространства.
Чтобы санузел выглядел больше, он должен быть хорошо освещен. В помещение не может быть темных углов.
Мебель лучше всего выбирать светлых оттенков, так же как и стены. Это зрительно увеличивает пространство. Идеальным вариантом будут кремовые оттенки.
Дизайн совмещенного санузла на фото
Проектированием помещения можно как заниматься самостоятельно, так и доверить это профессионалам, которые расставят предметы наиболее удобно. Можно подсмотреть дизайн совмещенного санузла на фото, размещенных в данной статье и применить наработки для создания своего индивидуального интерьера.

interiorno.ru
ШИКАРНЫЙ ДИЗАЙН ВАННОЙ 4 КВ. М. ФОТО ЛУЧШИХ СОВРЕМЕННЫХ ИДЕЙ 50 ФОТО С ОПИСАНИЕМ
Малогабаритные ванные комнаты – это довольно распространенный вариант в городских квартирах. Чтобы чувствовать себя удобно в таком «скромном» пространстве важно правильно расставить мебель и все сантехнические узлы.

Существует несколько вариантов планировки ванной комнаты 4 кв м:

первый можно считать классическим. Вдоль одной длинной стены располагается ванна, а напротив входной двери унитаз и раковина. В этом случае можно разместить полноценную по длине ванну. Кроме этого, одна стенка остается свободной, здесь можно установить полотенцесушитель. Но есть и минус – унитаз будет зажат в довольно узком пространстве;

можно использовать небольшую угловую сидячую ванну или душевую кабинку. В этом случае место у стенки напротив входной двери вполне хватит для удобного расположения раковины и унитаза. Также можно установить небольшой шкафчик или пенал для грязного белья;

если входная дверь расположена в длинной стенке, то по бокам от нее (вдоль коротких стенок) можно установить малогабаритную ванну и раковины. А напротив входа установить унитаз.
Подобрать подходящий вариант планировки ванной комнаты 4 кв м можно всегда. Главное, не спешить в выборе мебели и сантехнических узлов. Важно правильно подобрать размеры, которые должны точно совпадать с предназначенным для их установки местом.
Используем место над дверным проемом
Чтобы максимально эффективно использовать все пространство комнаты, важно не упустить ни один свободный уголок. Например, над дверным проемом остается довольно просторное и ничем не занятое пространство. А как его можно использовать?
В этом месте будет прекрасно смотреться открытая полка. Помещать над дверным проемом в малогабаритной ванной комнате закрытый шкаф – это неразумно. Такая конструкция визуально будет «красть пространство». Другое дело открытая полка, она красива и удобна. Главное, правильно подобрать конструкцию и внешний вид, чтобы дизайн вашей ванной комнаты не был испорчен.
Строгий современный интерьер ванной 4 кв. м.
Автор проекта студия Plaste[r]Lina




Ванная 4 кв. м. дизайн фото
Современный дизайн ванной 4 кв.м идеально сочетается с концепцией дизайна других помещений, четкие линии и правильные формы подчеркивают геометрию пространства, сглаживают и исправляют недостатки. На фоне доминантного бежевого оттенка особенно впечатляюще выглядит графитовый, его смягчает натуральная древесная фактура открытого шкафа витрины, который является главным акцентным элементом интерьера. Глянцевые поверхности отражают свет, визуально увеличивая и углубляя пространство, создавая атмосферу бесконечности. Необычное сочетание материалов придает ванной комнате своеобразного шарма и изысканности, камень, дерево и стекло гармонично сливаются в ансамбле роскоши и брутальности.
Дизайн ванной 4 кв. м. с туалетом
Автор проекта студия Plaste[r]Lina



Дизайн ванной комнаты фото 4 кв. м.
Современный дизайн маленькой ванны фото 4 кв м передает неповторимую атмосферу и раскрывает секреты правильно организованного пространства. Визуально углубить и расширить узкое вытянутое помещение поможет особое сочетание оттенков, глянцевые поверхности и большое акцентное зеркало. В отделке используется современный авторский прием, — плитка светлого оттенка внизу, переходит в темно-коричневый к потолку, создавая эффект наполненных медовых сот. Преобладающий бежевый оттенок дополняет фактура натурального дерева, придавая помещению особое настроение и шарм.
Мебель располагается вдоль стен, раковина встроена в закрытую тумбу с дополнительными местами для хранения, правильная расстановка экономит пространство и создает неповторимый дизайн ванной 4 кв.м с унитазом.
Современный стиль ванной 4 кв. м. со стиральной машиной и туалетом
Автор проекта студия Arch-buro




Совмещённый санузел с ванной дизайн фото 4 кв м
Особое сочетание оттенков и фактур создает неповторимый дизайн ванной 4 кв.м со стиральной машиной в коричневых тонах. Четкость линий и правильность форм визуально исправят геометрию помещения, сочетание светлых и темных оттенков придает глубину и расширяет пространство. Прямоугольную коричневую плитку на стенах смягчит светлая бежевая мозаика, слегка заметный цветочный орнамент над ванной придает особого шарма и элегантности строгому интерьеру.
Белая глянцевая мебель, располагается вдоль стен и растворяется на фоне отделки. Главным акцентным элементом является закрытая консоль, парящая в воздухе, примыкающая к стеклянной прозрачной перегородке. Благодаря отражающим и прозрачным поверхностям ванная комната наполняется проникающим светом, создавая эффект невесомости.
Дизайн ванной 4 кв метра с душевой кабиной и стиральной машиной. Эко-стиль
Автор проекта студия Arch-buro





Ванная комната 4 кв м со стиральной машиной. Фото
Небольшая ванная площадью 4 кв. метра в современном эко-стиле с характерными для него природными материалами и натуральными оттенками, прекрасно дополнит концепцию дизайна любого интерьера, наполняя его особой атмосферой живой природы. Фоновым доминирующим цветом является бежевый, его идеально дополняет фактура натурально дерева и мелкая мозаика.
Глянцевые поверхности отделки отражают свет, визуально расширяют и углубляют пространство. Места для хранения представлены в виде открытых подвесных полок, скрытых за белым легким тюлем, где легко размещается стиральная машина.
Подвесная консоль с встроенной раковиной выглядит более легкой и не перегружает пространство. Душевая кабина – идеальное решение для ограниченным помещений. Особого шарма придает акцентный зеленый оттенок в элементах декора.
Ванная в пещере горного короля в современном стиле
Автор проекта Наталья Мартынова



Живое и реалистичное фото ванной 4 кв.м в стиле лофт поможет правильно организовать интерьер ванной с ограниченной площадью. В отделке доминирует бежевый оттенок, представленный плиткой, имитирующей натуральный мрамор, его дополняет огромное панно с изображением структурного рисунка кварца. Смягчает строгость отделки тумба из натурального дерева с встроенной мойкой. Продолжает тематику графитовая матовая ванная и замысловатой геометрической формы кофейный столик. Особую роль играет освещение, отражаясь от глянцевых поверхностей, визуально расширяет и углубляет пространство, мягкий и теплый свет наполняет строгий брутальный интерьер особым настроением уюта, покоя и расслабления.
Дизайн маленькой ванной, наполненной духом природы. Фото проекта
Автор проекта RUSU Design




Ванная комната 4 кв метра. Фото
Неповторимый дизайн интерьера ванной 4 кв. метра создаст современный эко-стиль с присущими ему натуральными материалами и природной живой палитрой. Светлая крупная плитка бежевого оттенка является фоном, ее глянцевая поверхность отражает свет и визуально расширяет пространство, деревянная отделка стены над ванной наполняет комнату особым настроением и смягчает строгость глянца. Конструкция из искусственного камня, переходящая от пола к потолку, обрамляет большое зеркало и выполняет функцию консоли со встроенной раковиной. Особым акцентным элементом является дизайнерская инсталляция с подсветкой, тематически соответствующая эко-стилю.
Яркий зеленый цвет в декоре и плетеные корзины создают особую атмосферу живой природы в ванной комнате.
Дизайн ванной комнаты 4 кв. м. с ванной



Дизайн ванной 4 м2. Фото
Темный дизайн маленькой ванны фото 4 кв м передает атмосферу романтики и релаксации. Для помещений с ограниченной площадью часто используют темную однотонную отделку, данный прием визуально растворяет стены, создавая эффект бесконечности и неограниченного пространства. Черная мебель поглощается темной отделкой, не загромождает и не скрадывает пространство, однако, необходимо добавлять акценты, — светлые и яркие. Особое внимание уделяется освещению, приглушенный теплый свет смягчает строгость интерьера, подсветка по всему периметру потолка и пола создает эффект глубокого невесомого пространства. Брутальность форм и темная отделка окутаны теплом, наполняющим ванную расслабляющей атмосферой вдохновения и романтики.
Дизайн ванной комнаты 4 кв. м. в классическом стиле
Автор проекта Светлана Незус



Создать неповторимую атмосферу в ванной комнате поможет классический стиль барокко, с характерными для него роскошью и лоском. Деревянная отделка стен фонового светлого оттенка визуально расширяет и увеличивает пространство, наполняя его уютом и комфортом. Разноцветная мелкая мозаика на полу придает динамики и акцентности интерьеру. Двойной карниз углубляет и увеличивает высоту потолка, придавая интерьеру торжественности.
Классическая кованая мебель, имитация лепнины и роскошная ширма для ванной создают неповторимый изысканный дизайн интерьера ванной 4 кв. метра с особой изящной стилистической линией. Особый акцентный элемент – овальное зеркало с кованым обрамлением над белой массивной мойкой.
Современный дизайн синей ванной комнаты 4 кв. метра
Автор проекта Happy Irena




Современный дизайн ванной 4 кв.м с унитазом, наполненный морской тематикой, передающейся через оттенки и фактуры. Крупная синяя плитка над ванной в сочетании с мозаикой на фоне бежевых глянцевых поверхностей визуально углубляет и расширяет пространство, отражая свет, создает более легкую и воздушную атмосферу. Морская тематика воплощается в светлом песочном фоне пола и синеве морских волн плитки, дополняет настроение фактура камня на консоли со встроенной мойкой, визуально напоминающая морскую гальку и валуны.
Точечное освещение имитирует солнечные лучи, пронизывающие пространство. Особым элементом декора является большое зеркало простой прямоугольной формы с эффектом оптического обмана. Благодаря игре света и глянцевой отделке, дизайн интерьера ванной 4 кв. метра выглядит, как роскошное бунгало на берегу океана.
Теплый и уютный интерьер ванной 4 кв м. со стиральной машиной
Автор проекта Happy Irena




Изысканный дизайн ванной 4 кв.м со стиральной машиной создается благодаря простым авторским приемам. Холодная фактура каменной отделки в теплых оттенках кофе с молоком передает атмосферу расслабления и релаксации. Правильно расставленная мебель вдоль стен не загромождает и не перегружает пространство, длинная консоль с дополнительными скрытыми местами для хранения, позволяет разместить встроенную мойку и стиральную машину.
Особой изюминкой всего интерьера являются открытые ниши, декорированные геометрическим орнаментом, в которые можно расставить свечи, создавая особую романтическую атмосферу или необходимые ванные принадлежности. Стеклянная перегородка разделяет пространство на две функциональные зоны, практически незаметная, она выглядит легкой и воздушной.
Красно-серая ванная площадью 4 кв.м
Автор проекта Ancconcept


Изысканность в классическом сочетании оттенков идеально воплощается в дизайн ванной 4 кв.м с унитазом, оформленной в современном минималистичном стиле. Доминирующий серый оттенок плитки является фоном для глубокого и насыщенного алого. Глянцевые поверхности, отражающие свет, визуально расширяют и увеличивают пространство, более темный красный оттенок придает глубины и объема. Холод плитки смягчается теплой ярко выраженной фактурой натурального дерева закрытой консоли с дополнительными местами для хранения, на которой установлена мойка. Конструкция тумбы приподнята над полом и прикреплена к стене, создавая иллюзию невесомости, она будто парит в воздухе. Натуральная фактурная штора для ванной сглаживает строгость и сдержанность интерьера.
Современный минималистичный интерьер идеально подходит для помещений с ограниченной площадью, исправляет геометрию пространства, наполняет его современным функционалом и практичностью.
Современный дизайн ванной комнаты от ART Workshop
Автор проекта ART Workshop



Но на этом мы с вами не прощаемся, заходите ещё!
С любовью, «Будь в теме!»
Источник
sam-sdelay.ru











