Проект перепланировки хрущевки 2 комнаты: Варианты перепланировки 2-комнатной квартиры в хрущевке
Перепланировка хрущевки. Варианты и примеры 2022.
На заре массового домостроения новая технология строительства домов по серийным типовым проектам стала прорывом, позволив в короткие сроки обеспечить жильем множество людей, ютившихся до этого в бараках и коммуналках. На неудобные планировки и тесноту помещений тогда никто не обращал внимания.
Однако теперь приоритеты поменялись, и многим обитателям хрущевок хочется хоть как-то усовершенствовать свое жилье, приблизив его к современным стандартам.
Квартира хрущевка
Хрущевки – это тип многоквартирных домов, которые появились в СССР в период с 1953 по 1964 годы, во время правления Н.С. Хрущева, и получившие в народе его имя.
Пришедшие на смену сталинкам, хрущевки дали старт массовому строительству типового жилья, развернутому в стране во второй половине 50-х годов после принятия Советом министров постановления “О развитии жилищного строительства в СССР”.
Хрущевки: серии домов
В первые годы хрущевки преимущественно строились из кирпича.
Но затем при возведении домов, отличавшихся простотой и функциональностью, все больше стали использоваться панели и блоки, что значительно ускорило темпы и удешевило процедуру строительства многоэтажек.
Однако в Москве из-за недостатка ресурсов одновременно с панельными и блочными продолжали строиться также и кирпичные жилые здания.
Вот наиболее распространенные серии хрущевок, ставшие массовыми.
Кирпичные: СМ-3, СМ-6, II-08, II-14, 1-447, II-29, 1-511.
Панельные: К-7, 1-335, 1-515, 1МГ-300.
Блочные: II-18, 1-510.
Фото хрущевки серии II-29.
Планировка хрущевки
Жилые помещения внутри домов, построенных в хрущевскую эпоху, как правило, отличаются небольшой площадью.
Однако, несмотря на тесные и узкие коридоры, которые являлись не более, чем вспомогательной зоной для прохода между основными помещениями, полезная площадь квартир в жилых домах хрущевской эпохи использовалась максимально эффективно.
Также стоит отметить, что во многих хрущевках планировкой предусмотрены помещения для хранения вещей и одежды – “темные комнаты”, встроенные шкафы, кладовки и подсобки.
Кухня в хрущевке
Площадь кухонных помещений в хрущевках варьируется в пределах 5-7 кв. м. По мнению архитекторов и инженеров того времени, этой площади было достаточно, чтобы разместить небольшой кухонный гарнитур, обеденный стол со стульями и холодильник.
Ограничения при перепланировке квартир в хрущевских домах
Как правило, перепланировка квартиры в хрущевке затрагивает самые неудобные помещения – кухню, ванную, санузел и коридор. Все эти помещения обычно настолько малы, что довольно часто возникает потребность объединить их друг с другом.
Надо сказать, что перепланировка квартиры хрущевки в этом плане облегчается тем, что в ней большинство стен являются ненесущими перегородками, а это открывает практически неограниченные возможности в плане внесения изменений в конфигурацию помещений – от новых дверных проемов до перепланировки хрущевки в студию.
Сказанное относится, в первую очередь, к панельным и кирпичным хрущевкам.
Хрущевка серии 1-511, фото.
Ремонт в хрущевке
Вместе с тем перепланировка в жилых зданиях такого типа имеет и свои сложности. Например, моментом, осложняющим перепланировку кухни в хрущевке путем объединения ее с одной из жилых комнат, является наличие газовой плиты.
Электрические плиты в таких домах – большая редкость. Поэтому объединять в них кухню и комнату без плотно закрывающейся двери или установки раздвижной перегородки запрещено.
Данный запрет содержится, в частности, в пунктах 10.16 и 10.26 Приложения 1 к ППМ №508-ПП и касается не только хрущевок, но и любых других жилых многоквартирных домов с газифицированной кухней.
Перепланировка ванной комнаты в хрущевке обычно осуществляется посредством объединения ее с санузлом, а также расширения получившегося помещения на коридор. Данные мероприятия затрагивают конструкцию полов, поэтому должны сопровождаться укладкой гидроизоляции, что, в свою очередь, требует разработки проекта перепланировки.
При расширении ванной и туалета следует помнить, что делать это разрешается только за счет смежных нежилых помещений, то есть коридора или кладовой. Поэтому желательно уточнить, не относится ли по документам БТИ участок коридора, примыкающий к ванной и санузлу, на самом деле, к жилой комнате (см. фото ниже).
Оранжевым цветом на планах БТИ отмечена зона, относящаяся в хрущевках не к коридору, как это принято считать, а к жилой комнате. И расширять на нее санузел (ванную) можно только в квартирах первых этажей.
Кроме того, следует учесть требования СНиПов, запрещающие расширять «мокрые точки» за счет кухни и наоборот, а также располагать эти помещения над жилыми комнатами соседей снизу.
Хрущевка серии 1-447, фото.
Зачем окно между кухней и ванной?
Во многих хрущевских квартирах проектом дома предусмотрено окно между кухней и ванной (санузлом). Оконный проем расположен в верхней части стены, разделяющей помещения, напротив уличного окна.
Данная “архитектурная находка” выполняла функцию естественного освещения, поскольку нередко происходили перебои в электроснабжении. И позволяла даже при отключении электричества пользоваться умывальником и туалетом.
Кроме того, окно делалось с расчетом на то, что в случае взрыва газа на кухне вместо стены ударной волной выбивало бы только стекло.
Оконный проем в стене между кухней и санузлом, фото.
Закладка данного оконного проема считается перепланировкой, поскольку он отмечен на плане БТИ. А любое изменение на плане квартиры должно быть согласовано.
Если заложение окна между кухней и ванной комнатой является единственным мероприятием по перепланировке квартиры, то его можно согласовать по эскизу, без разработки проектной документации.
О том, какие еще ремонтные работы в квартире возможно узаконить в упрощенном порядке, мы рассказали в статье “Согласование перепланировки по эскизу”.
Проект перепланировки хрущевки
На сайтах, посвященных ремонту, можно отыскать множество фото реализованных проектов перепланировки хрущевок.
Однако не стоит путать дизайн-проект с полноценной проектной документацией по перепланировке. Основное их отличие состоит в том, что дизайн-проект предназначен лишь для визуализации облика вашей жилплощади после ремонта. Проект перепланировки служит для согласования перепланировки с соблюдением действующих законов и нормативов.
Он включает все расчеты, которые необходимы для соответствия конкретного ремонта строительным, санитарным и противопожарным нормам. Именно проект понадобится для согласования перепланировки в жилищной инспекции. Заказать разработку такого проекта можно в организации, имеющей свидетельство СРО.
Кроме разработки проекта перепланировки хрущевки потребуется обследование квартиры и оформление технического заключения о возможности проведения ремонтных работ в помещении.
Заказывается обследование и заключение, как правило, в специализированной организации, обладающей допуском СРО. Но когда вы затрагиваете несущую стену (в блочных хрущевках они часто встречаются в габаритах квартир), техническое заключение заказывается только у автора проекта дома.
Для большинства хрущевок это – АО МНИИТЭП.
Как согласовать перепланировку квартиры в хрущевке
Многие собственники квартир, не желая связываться с ненужной бумажной волокитой, выполняют работы самовольно, на свой страх и риск. Это в корне неправильно, поскольку является нарушением жилищного законодательства, которое требует согласовывать любые изменения поэтажного плана БТИ с Мосжилинспекцией. Это касается не только тех случаев, когда затрагиваются несущие стены и коммуникации. Снос межкомнатных перегородок также считается перепланировкой и требует согласования.
Следует учесть, что незаконная перепланировка, даже если работы выполнены без существенных нарушений, затрудняет возможность распоряжаться квартирой, как своей собственностью. Например, такую квартиру сложно продать, поскольку при этом откроется факт самовольных изменений, улаживать которые придется новому собственнику.
Если незаконная перепланировка квартиры в хрущевке не затрагивает несущих стен, то вполне вероятно, что работы были проведены без существенных нарушений, и впоследствии вы сможете согласовать их «задним числом».
Если же вы проводили запрещенные работы, например, переносили батарею на балкон, или в результате ваших действий у соседей пошли трещины по несущей стене, либо плохо уложенная гидроизоляция дала течь, то узаконить перепланировку вам уже не удастся. В этом случае придется не только возвращать своей квартире прежний вид, в соответствии с предписанием от инспектора, но и оплачивать ремонт пострадавшим соседям.
Как же сделать перепланировку в хрущевке законной и избежать неприятностей с авариями, предписаниями и штрафами? Для этого лучше всего позаботиться о согласовании заранее, что позволит не только соблюсти закон, но и сделать все в соответствии со строительными и санитарными нормами и правилами.
Вам потребуется собрать пакет документов, согласно установленному ППМ № 508-ПП перечню, а также обратиться в проектную организацию за разработкой проектной документации на вашу однушку, двушку или трешку в хрущевке. Логичнее всего доверить все эти действия профессионалам, которые все сделают за вас, включая сдачу завершенной перепланировки комиссии жилищной инспекции.
Если вам нужно больше информации об этапах согласования перепланировки квартиры в Москве, переходите сюда.
Варианты перепланировки хрущевки
Наша организация много лет успешно занимается проектированием и согласованием перепланировок в Москве и области. Мы работаем с квартирами в сталинках, брежневках, новостройках. Также среди наших объектов есть много хрущевок.
Далее вы можете посмотреть примеры перепланировок квартир в жилых домах, построенных в хрущевскую эпоху.
Все эти перепланировки в разное время были успешно согласованы с жилищной инспекцией города Москвы.
Проекты в каждом случае разработала наша организация. Часть проектов согласовывалась также нашими сотрудниками по доверенности от собственников. Но есть среди них и проекты, разрешение на которые владельцы квартир получали в жилищной инспекции самостоятельно.
Возможно, планировка вашей квартиры совпадает с каким-нибудь из предложенных примеров. Это может помочь вам составить мнение о том, как именно допускается переделывать интерьер квартиры в хрущевке, и определиться с окончательным вариантом именно вашей перепланировки.
Перепланировка трехкомнатной хрущевки
Основной целью данной перепланировки, которая проводилась в кирпичной пятиэтажке серии II-14, было сделать из трешки 4-комнатную квартиру. Чтобы достичь желаемого, одну из жилых комнат разделили перегородкой, при этом каждая из получившихся комнат оказалась с окном (то есть требования по инсоляции были соблюдены). А для прохода в новую комнату в ненесущей перегородке сделали проем и смонтировали дверной блок с дверным полотном.
Перепланировка 3 комнатной хрущевки
В результате перепланировки 3 х комнатной хрущевки (дом серии 1-515) произвели следующие работы. Демонтаж перегородки между кухней и комнатой и установку сдвижных дверей на ее месте. Объединение уборной и ванной комнат и присоединение к ним коридора, ведущего в кухню. Демонтаж межкомнатных перегородок и установку новых, а также звукоизоляцию стены в большой комнате. Также были сделаны три встроенных шкафа – два в коридоре и один в комнате.
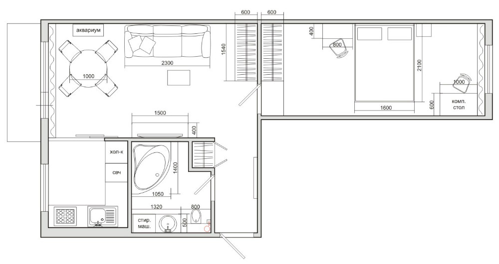
Перепланировка 2 х комнатной хрущевки
По ходу перепланировки двушки в хрущевке (дом серии 1-511) осуществили перенос газовой плиты, устройство совмещенного санузла, слом встроенного шкафа и монтаж большого гардероба в комнате.
Перепланировка двухкомнатной хрущевки
Перепланировка 2х комнатной хрущевки серии II-14 примечательна заменой газовой плиты на электрическую, устройством встроенного шкафа в другом месте и уменьшением коридора в пользу жилой комнаты.
Перепланировка хрущевки, 3 комнаты
При проведении перепланировки этой 3 х комнатной квартиры в хрущевке туалет объединили с ванной комнатой. При этом окно между ванной и кухней заложили. Из проходной комнаты сделали изолированную путем возведения ненесущей перегородки. Между кухней и жилой комнатой установили раздвижную дверь типа купе.
Перепланировка хрущевки 45 кв. м
Ранее мы отмечали, что во многих хрущевках предусмотрены вспомогательные помещения, типа встроенных шкафов и кладовок. Но не в этом случае. Поэтому перепланировка двухкомнатной хрущевки с проходной комнатой проводилась с целью устройства гардеробных. По одному помещению устроили на территории каждой из комнат.
Перепланировка хрущевки, 2 комнаты смежные
Основная часть работ по перепланировке 2 комнатной квартиры в хрущевке серии 1-511 пришлась на кухню (помещение 3 на планах проекта).
Вход в кухонное помещение раньше был устроен из коридора, а теперь его сделали из комнаты. Мойку и газовую плиту перенесли.
Перепланировка 1 комнатной хрущевки 30 кв. м
По данному проекту перепланировки однокомнатной хрущевки между кухней и комнатой установили раздвижную дверь, а между кухней и санузлом заложили оконный проем. В санузле установили меньшую по размеру ванну и перенесли умывальник. В кухне переставили мойку. А пространство между коридором и комнатой сделали максимально открытым, демонтировав ненесущие перегородки с дверным блоком.
Перепланировка 2 комнатной хрущевки
Особенностью перепланировки двухкомнатной квартиры в хрущевке серии II-29 стало то, что изменения в той или иной степени коснулись всех помещений.
Встроенные шкафы снесли и устроили в одной из комнат вместительную гардеробную. Между комнатой и кухней смонтировали раздвижную перегородку. Перепланировка санузла в хрущевке заключалась в совмещении уборной с ванной с их последующим расширением на часть площади коридора.
Перепланировка трешки в хрущевке
Среди многочисленных ремонтно-строительных мероприятий по перепланировке 3х комнатной квартиры в хрущевке остановимся на одном, которое пока еще не упоминали. Речь идет о демонтаже подоконного блока между комнатой и балконом. Взамен стандартной конструкции, состоящей из подоконной части стены, двери и окна, установили “французское остекление” в пол, разделив таким образом холодное и теплое помещения квартиры.
Другие согласованные проекты перепланировок можно посмотреть в разделе “Наши работы”.
Заказать разработку проектной документации и согласование перепланировки квартиры “под ключ” вы всегда можете в нашей организации. Консультация наших специалистов бесплатна.
Перепланировка хрущевки в 2022 — Все нюансы.
Перепланировка хрущевки- разрешение на ремонт
Молодежь с трудом ответит на вопрос, кто такой Хрущёв, а вот рожденные его эпохой здания типовой застройки, призванные решить жилищную проблему советских граждан, стоят до сих пор, и видимо, простоят ещё долго.
Строили «хрущевки» как временное жилье не очень высокого комфорта, а потому перепланировка квартир в ней и улучшение жилищных условий весьма актуальны в наши дни. Многие задаются вопросом: как сделать перепланировку в хрущевке? Надеемся, наша статья поможет хотя бы частично ответить на этот вопрос.
Перепланировка хрущевки- стоимость согласования.
Стоимость согласования перепланировки квартиры в хрущевке зависит от множества факторов, но прежде всего от вида планируемых работ, а также от округа расположения дома и его типа. С ценами для наиболее часто встречающихся случаев Вы можете ознакомиться здесь. Для уточнения стоимости согласования именно Вашей перепланировки, пожалуйста, заполните соответствующую форму, свяжитесь с нами по телефону +7 (495) 507-74-67 или отправьте запрос на почту [email protected].
Содержание статьи
- 1. Перепланировка квартиры в хрущевке. Нюансы и особенности.
- 1.1. Внутри квартиры нет несущих стен.
- 1.
2. Затрагивания санузла. - 1.3. Демонтаж перегородки между кухней и комнатой.
- 2. Узаконенные идеи и варианты перепланировки хрущёвки.
- 2.1. Перепланировка двухкомнатной хрущевки.
- 2.2. Перепланировка однокомнатной хрущевки.
- 2.3. Перепланировка хрущевки- 2 комнаты.
- 2.4. Перепланировка 2-х комнатной хрущевки.
- 2.5. Перепланировка 1-комнатной хрущевки.
- 2.6. Перепланировка угловой однокомнатной хрущевки.
- 2.7. Перепланировка двухкомнатной квартиры в хрущевке.
- 2.8. Перепланировка трехкомнатной квартиры в хрущевке.
- 2.9. Перепланировка трехкомнатной хрущевки.
- 2.10. Перепланировка хрущевки в 3 комнаты.
- 2.11. Перепланировка 3-х комнатной хрущевки.
- 2.12. Перепланировка четырехкомнатной хрущевки.
1. Перепланировка квартиры в хрущевке. Нюансы и особенности.
1.1. Внутри квартиры нет несущих стен.
Расположение несущих стен в хрущевке.
В 90% случаев внутренние стены квартир в хрущевках являются не несущими перегородками, то есть их можно смело демонтировать при перепланировке без влияния на общее состояние здания.
Правда, при этом не следует забывать о требованиях строительных, правовых и санитарно-гигиенических норм, которые необходимо соблюдать.
Даже при затрагивании только не несущих перегородок можно нарушить некоторые законы, о которых мы поговорим ниже. Обычно несущими в хрущевке являются ограждающие стены квартиры, все или только некоторые. Единственное, что может находиться из несущих конструкций внутри квартиры кирпичных домов- это балки, опирающиеся на наружные и внутренние межквартирные несущие стены. Справа на рисунке приведен типичный пример расположения несущих стен в реальной квартире-хрущевке (зелёным отмечены несущие стены и диафрагмы жесткости). Многие, как мы уже упоминали, ошибочно полагают, что если они не затрагивают несущих стен, то согласовывать такую перепланировку не надо. На самом деле, перепланировка квартиры-хрущевки с любым изменением конфигурации перегородок влечёт за собой обязанность внесения этих изменений в документы БТИ на квартиру, а, следовательно, требует и соответствующего согласования.

Более того, большинство этих изменений согласовываются по проектам, выполняемых соответствующими организациями с разрешением. Ознакомиться с требованиями к проектам можно здесь.
Более подробно об определении несущих стен в хрущевках Вы можете почитать здесь.
Комментарий к видео:
Изменились пункты: Объединять газифицированную кухню с жилым помещением нельзя согласно п. 9.16 Приложения 1 к Постановлению Правительства Москвы № 508 (после введения ППМ №1083 от 15.06.2022).
Изменение: теперь выход из помещения с унитазом можно делать в любую комнату, так как отменили СаНПиН, который раньше это запрещал.1.2. Затрагивание санузла.
В большинстве хрущевок традиционно тесными являются ванна и туалет, поэтому практически у всех при перепланировке хрущевки возникает естественное желание объединить их и расширить. Здесь главное не забывать о пункте п. 7.20 СП 54.13330.2022, который говорит о том, что мокрые зоны, такие как туалет, ванная, санузел и др.
, нельзя расширять за счет кухни и жилых комнат. Такие помещения можно увеличивать только за счет нежилых помещений (коридора, встроенных шкафов, кладовых и т.д.).
В связи с этим при перепланировке квартир в хрущевках довольно часто встречается пограничная ситуация.
Перепланировка хрущевки. Проблемная область.
Выделенная красным область на рисунке слева функционально является коридором, а формально по БТИ отнесена к площади жилых помещений. Поэтому расширение санузла за счёт этой зоны невозможно.
Более подробно об объединении и расширении мокрых зон Вы можете прочесть здесь.
1.3. Демонтаж перегородки между кухней и комнатой.
Перепланировка квартиры-хрущевки, как правило, примечательна ещё одним часто встречающимся фактором. В таких квартирах тесными являются не только санузлы и ванные, но и кухня, поэтому вполне логичным решением при перепланировке хрущевки является её расширение. Тут тоже следует знать о некоторых законах:
а) запрещается переносить или расширять кухню за счет территории жилых комнат в соответствии с пунктом 7.
21 СП 54.13330.2022.Согласованная перепланировка двухкомнатной хрущевки.
б) не допускается демонтировать перегородку между кухней, оборудованной газовой плитой, и жилой комнатой согласно п. 9.16 Приложения 1 Постановления №508 Правительства Москвы. И даже устраивать в такой перегородке проём без двери.
К сожалению, почти во всех хрущёвках установлены газовые плиты, а потому желание увеличить маленькие габариты кухни за счёт её присоединения к комнатам натыкается на невозможность осуществления ввиду описанных выше пунктов. Выхода два:
- либо менять газовую плиту на электрическую, что довольно трудозатратно;
- либо отделять жилую комнату от кухни раздвижными перегородками.
Более подробно о таком переустройстве кухонь Вы можете прочесть здесь.
Как видно из всего перечисленного, перепланировка и ремонт хрущевки относятся к достаточно сложным мероприятиям, требующим тщательного планирования и проработки планировки. В целом, к сожалению, такие квартиры, прежде всего из-за своей маленькой площади, дают мало простора для реализации дизайнерской мысли.
Безусловно, перепланировка трёхкомнатной хрущевки или перепланировка четырехкомнатной хрущевки в этом плане предоставляют гораздо больше вариантов планировки, чем перепланировка хрущевки с одной или двумя комнатами, что, в общем-то, логично.
Ниже мы решили привести идеи и варианты перепланировки хрущевки, которые были успешно согласованы и на которые были получены соответствующие разрешения (это подтверждается наличием на листе из проекта соответствующего штампа жилищной инспекции). Возможно, некоторые из них совпадают с планировками Ваших квартир, позволят составить мнение о допустимости того или иного переустройства, а, может быть, даже подкинут какую-нибудь стоящую идею к преобразованию Вашей квартиры. На каждой картинке представлен согласованный план перепланировки хрущевки из соответствующего проекта с отметкой демонтируемых и возводимых перегородок. Либо план квартиры до и после переустройства. Демонтируемые перегородки отмечены пунктиром, а возводимые закрашены сплошным цветом.
Также советуем Вам прочесть статью о том, как узаконить перепланировку квартиры.
2. Узаконенные идеи и варианты перепланировки хрущевки.
2.1. Перепланировка двухкомнатной хрущевки.
До ремонта.
После ремонта
В данном случае приведен не совсем типичный вариант перепланировки двухкомнатной хрущевки. Санузел сделали совместным и расширили на территорию коридора, ведущего в кухню. Вход в кухню предусмотрели из комнаты. Следует отметить, что между ними установлены раздвижные перегородки, о чем говорилось в третьем пункте данной статьи.В центре квартиры расположили большую жилую комнату необычной конфигурации.
2.2. Перепланировка однокомнатной хрущевки.
До переустройства.
После переустройства.
Работы, представленные в этом примере практически аналогичны осуществленным ремонтным работам из предыдущего примера с той только разницей, что в данном случае проиллюстрирован вариант перепланировки однокомнатной хрущевки. В результате удалось получить просто огромный по меркам хрущевок санузел, да ещё и в однушке.
В него уместилась не только ванна, но и душ со стиральной машиной, что в хрущевках встречается крайне редко.
2.3. Перепланировка хрущевки — 2 комнаты.
Перепланировка содержит похожие мероприятия, что и в предыдущих примерах. Отличительной особенностью является отсутствие дверей или перегородки между кухней и комнатой. Это стало возможным благодаря тому, что в доме был выполнен капитальный ремонт и во всех кухнях здания были установлены электрические плиты. К сожалению, такие капитальные ремонты встречаются в хрущевках очень редко.
2.4. Перепланировка 2-х комнатной хрущевки.
На рисунке приведена интересная перепланировка 2-комнатной хрущевки. Газифицированная кухня увеличена на площадь комнаты на толщину перегородки. Так как это расширение осуществлено лишь на толщину перегородки, то кухня по-прежнему не расположена над жилой комнатой соседей снизу, а потому формально не нарушает соответствующий закон. Однако, на практике возможность осуществления такого пограничного случая сильно зависит от позиции по данному вопросу проверяющего чиновника.
2.5. Перепланировка 1-комнатной хрущевки.
До перепланировки.
На рисунке представлена перепланировка однокомнатной квартиры. Такие малогабаритные квартиры с трудом поддаются каким-либо существенным изменениям ввиду своей небольшой площади, однако и из них иногда удается сделать вполне комфортабельное жилье. Перепланировка однушки в хрущевке обычно содержит простые работы. К примеру, небольшое увеличение площади санузла за счет коридора с устройством входа в газифицированную кухню из жилой комнаты.
2.6. Перепланировка угловой однокомнатной хрущевки.
Угловые квартиры обычно хороши тем, что в них присутствует дополнительное окно, которое позволяет разделить одну большую комнату на две меньшие с отдельным окном в каждой. Правда в однокомнатной квартире, к сожалению, редко удается сделать такое разделение, так как комнаты могут получиться очень маленькими. В данном примере, собственники не пошли таким путём. Они немного увеличили санузел, а также установили рольставни вместо перегородки между комнатой и кухней, немного сдвинув их в сторону последней, что было допустимо, так как квартира расположена на последнем этаже.
2.7. Перепланировка двухкомнатной квартиры в хрущевке.
До ремонта.
После ремонта.
При выполнении этого ремонта в квартире были осуществлены схожие мероприятия, что и в предыдущих примерах. Отличительной особенностью является тот факт, что между комнатой и кухней установлены большие раздвижные перегородки, но при этом от коридора кухня ничем не отделена, что никак не запрещено законом.
2.8. Перепланировка трехкомнатной квартиры в хрущевке.
В данном случае опять же санузел был выдвинут в коридор, а кухня добавлена к гостиной с созданием единого пространства гостиной-столовой. Пример примечателен тем, что на планах БТИ квартиры совсем не была указана плита, а потому пришлось брать соответствующую справку в управляющей компании о том, что в доме установлены электрические плиты.
2.9. Перепланировка трехкомнатной хрущевки.
Данный пример очень специфичен перестановкой газифицированной кухни в коридор. Для согласования данного мероприятия пришлось заглушить в квартире газовый стояк и установить вместо газовой плиты электрическую.
Только благодаря такой замене удалось осуществить согласование данной перепланировки.
2.10. Перепланировка хрущевки в 3 комнаты.
В данной квартире для согласования присоединения кухни к комнате решили установить рольставни. Это весьма удобное решение. Стоят они недорого и легко демонтируются, а перед продажей или получением документов на квартиру легко могут быть установлены назад. В принципе, их даже не обязательно демонтировать, а просто держать в открытом состоянии.
2.11. Перепланировка 3-х комнатной хрущевки.
Данная перепланировка трешки в хрущевке примечательна тем, что из санузла пришлось выполнить второй выход в коридор, так как делать выход из помещения, оборудованного унитазом, сразу в жилую комнату запрещено по санитарно-гигиеническим нормам.
2.12. Перепланировка четырехкомнатной хрущевки.
До ремонта.
После ремонта
Данный пример, к сожалению, уже является анахронизмом. Раньше в некоторых округах допускалось присоединять газифицированную кухню к другим помещениям, если назвать их в экспликации нежилыми.
Сейчас такие уловки уже не проходят.
Мы рассмотрели большое количество согласованных примеров перепланировки квартир в хрущевках. В завершение нашей статьи мы хотим привести несколько примеров разрешений на такие переустройства. Такое разрешение на перепланировку выдается вместе с проектом и говорит о том, что ремонт законен и может быть осуществлен.
Перепланировка 3 комнатной хрущевки- распоряжение.
Перепланировка двушки-хрущевки- распоряжение.
Дизайн хрущевки — заказать дизайн проект хрущевки в Киеве в студии NSDgroup
Главная » Дизайн квартиры хрущевки в Киеве
Проекты, созданные дизайнерами бок о бок с инженерами.
Безопасно, красиво и комфортно для жизни
- От 27 грн/м2 разработка дизайн-проекта
- 7 Дизайнеры с абсолютным чувством стиля
- Более 350 проектов за 15 лет работы
- 60% клиенты приходят по рекомендации
рассчитать
Дизайн хрущевки в Киеве от Nsdgroup Отличительной особенностью хрущевок является их неуклюжая планировка.
Для дизайна малогабаритных квартир, стилевых направлений таких как:
- минимализм. Выглядит стильно, не загромождает помещение и при этом имеет привлекательный внешний вид;
- экостиль. Способен создать приятную и легкую атмосферу, окутывающую теплом и уютом;
- Скандинавский. Присущая ему практичность и функциональность будут как нельзя кстати;
- классический.

Хай-тек, лофт и другие стили не очень пригодятся в хрущевке, но отдельные их элементы при желании можно красиво обыграть в интерьере.
Этапы и условия работы
Первый этап
Техническое задание
Составление технического задания происходит в форме беседы, в которой наши специалисты фиксируют ваши пожелания к будущему дизайну.
Второй этап
Планировочное решение
В основе любого дизайн-проекта лежит продуманная и качественно выполненная планировка. Разработка планировочного решения – начальный этап создания любого дизайн-проекта, основы будущего объекта.
Третий этап
Эскизный проект, объемная визуализация
Непосредственной задачей дизайнера на данном этапе является концептуальное решение интерьера, выбор стилистического направления, цветовых сочетаний, отделочных материалов, декора.
Четвертый этап
Рабочая документация
Наши специалисты готовят пакет технической документации.
Рабочая документация содержит все необходимые технические данные, позволяющие строительной бригаде воплотить утвержденный проект в жизнь.
Пятая очередь
Пятая очередь
Ремонт квартиры при наличии профессионального дизайн-проекта, позволяет добиться результатов, которые устраивают владельцев квартиры. Современный ремонт квартиры по дизайн-проекту – это грамотное и спланированное выполнение работ, что обеспечит четкое пошаговое выполнение работ на высшем уровне. На этом этапе наши специалисты передают проектную документацию нашей строительной бригаде и начинается реализация проекта.
Шестой этап
Авторский надзор
В ходе авторского надзора автор сможет консультировать строителей. Присутствуя на объекте, он расскажет подрядчикам, почему важно точно соблюдать размеры, как должны располагаться светильники и в какой цвет красить стены. Даже небольшие, на первый взгляд, нарушения могут ухудшить внешний вид помещения.
Седьмой этап
Новоселье
Новый дом — новая жизнь
Дизайн интерьера квартиры хрущевки: особенности и варианты оформления Красиво украсить хрущевку можно, но это под силу только настоящим профессионалам.
Небольшое пространство и большое количество особенностей помещения не позволяют реализовать любые пожелания, но это не значит, что добиться комфорта, функциональности и эргономики не получится. Креативные дизайнеры с большим опытом работы могут разработать:
- Дизайн квартиры-студии. Такая квартира действительно очень маленькая, и чтобы превратить ее в уютное жилище, следует по возможности отказаться от дверей (заменить их арками), вместо больших люстр использовать на потолках точечные светильники, присмотреться к трансформируемая мебель, а также наливные полы. Также стоит отметить, что светлые тона и зеркальные поверхности зрительно увеличат пространство – главное не переборщить;
- двухкомнатная квартира. Здесь, как правило, дизайнеры стараются объединить их в одно целое и сделать его завершенным и удобным. Но этот вариант подходит только для небольших семей;
- Трехкомнатная квартира. Дизайн-проект, как правило, также включает в себя перепланировку помещения и подразумевает создание неповторимого стиля в интерьере, оформление отдельных зон по желанию заказчика и создание жилья, в котором будет комфортно каждому члену семьи.
и где у каждого будет свое личное пространство. В таком жилье можно создать более-менее комфортные условия проживания даже для семьи с детьми; - Четырехкомнатная квартира в хрущевке. С таким помещением удобнее всего работать, так как в этой квартире можно реализовать любые стили и необычные интерьерные решения.
ПОСМОТРЕТЬ КАЧЕСТВО ВЫПОЛНЕННЫХ НАМИ ОБЪЕКТОВ
Как формируется стоимость разработки проекта хрущевки?Цена на разработку проекта хрущевки рассчитывается индивидуально для каждого заказчика. Формируется в зависимости от многих факторов, в том числе:
- выбранный пакет услуг от компании, в рамках которого дизайнер разработает проект в ванную комнату, кухню, детскую и т.д. Ведь их окончательная стоимость будет зависеть от того, какие работы будут выполнять сотрудники студии;
- комнатная площадь;
- выбран космический стиль. Здесь, правда, хозяева несколько ограничены, ведь воплотить в жизнь ампир точно не получится.

Чтобы узнать стоимость разработки дизайн-проекта вашей квартиры, оставьте заявку на сайте, позвоните или посетите наш офис в столице. Наши менеджеры с радостью подберут для вас наиболее комфортную схему сотрудничества и ответят на все ваши вопросы.
Преимущества заказа дизайна хрущевки под ключ у НСДгруппДля людей, далеких от мира дизайна, очень часто необходимость привлечения специалиста к разработке проекта кажется неочевидной. Ну что сложного в том, чтобы продумать цвет стен, подобрать красивую мебель или люстру в комнату? Вроде ничего. и у человека с хорошим вкусом это вполне может получиться. Однако следует понимать, что дизайнер отвечает не только за красоту. Он также отвечает за комфорт и удобство пребывания в помещении. А на это уже влияет множество деталей, которые может продумать только специалист.
Обращаясь в НСДгрупп вы получаете:
- индивидуальный подход к каждому клиенту. Наши дизайнеры подходят к поставленным перед ними задачам со всей ответственностью и каждый дизайн-проект перепланировки хрущевки разрабатывается индивидуально с учетом пожеланий заказчика.
Искренне хотят помочь создать дома настоящий рай, где можно полноценно отдохнуть и расслабиться; - подробный план организации пространства в рамках определенного бюджета. Самостоятельно определить, сколько будет стоить реализация проекта достаточно сложно, но специалист выполнит расчет четко и правильно;
- оригинальный проект. Мы понимаем, как сильно вы хотите, чтобы ваш уголок был единственным и неповторимым, а потому, несмотря на наличие референсов, мы всегда создаем проект по-новому и стремимся, чтобы каждый вариант был «с изюминкой». Также мы прекрасно понимаем, что возможно для кого-то иметь в своем жилье стиль лофт или хай-тек было идеей всей жизни и поэтому мы обязательно учтем этот момент при разработке проекта. Полностью реализовать их не получится, но реализовать отдельные части в проекте получится точно. Задача специалиста как раз и состоит в том, чтобы гармонично соединить желания хозяина дома, веяния моды и адаптировать их к особенностям жилья;
- своевременное выполнение задания.
Специалисты всегда сдают проекты в оговоренные в договоре сроки; - качественная реализация проекта. Планы, разработанные проектировщиками, будут понятны коллективу рабочих и проблем с их прочтением точно не возникнет.
Документирование советской программы межконтинентальных баллистических ракет
Семь документов из российских архивов дают краткий обзор развития советской программы создания баллистических ракет после Второй мировой войны, кульминацией которой стало создание межконтинентальной баллистической ракеты Р-7 в 1957.
Документ № 1 является первым крупным постановлением советского правительства, которое выделяло ресурсы на разработку баллистических и крылатых ракет большой дальности. Выпущенный 13 мая 1946 г., он в настоящее время считается основополагающим документом советской космической программы, поскольку в нем были созданы зародышевые управленческие и научно-исследовательские учреждения космической программы.
Этим постановлением был создан «Особый комитет по реактивной технике» для наблюдения за ракетной программой на высшем уровне во главе с членом Политбюро Георгием Маленковым (которого в 1919 году на посту председателя сменил Николай Булганин).47). Как засвидетельствовано в документе, в то время все советские исследования в области ракет большой дальности были основаны на создании копий и производных трофейных немецких ракет, таких как Фау-2 (называемая здесь «ФАУ-2») и Вассерфаль. . Он поручил нескольким научно-исследовательским организациям сосредоточиться на воспроизведении немецких ракет, в первую очередь, НИИ-88, предшественнице Ракетно-космической корпорации «Энергия», ведущей российской космической организации 21 г. в.[1]
Документ № 2 представляет собой краткий отчет, подготовленный министром оборонной промышленности Дмитрием Устиновым 15 октября 1951 г., о сумме взносов немецких ученых, конструкторов, инженеров и техников, насильственно переселенных в Советский Союз.
Союза в октябре 1946 года. Документ, адресованный Лаврентию Берии, руководителю советских программ стратегического вооружения (включая атомную бомбу, ракеты большой дальности и проекты противовоздушной обороны), дает технический, но краткий отчет о вкладе Германии в советские усилия. Все немцы были репатриированы обратно в Германскую Демократическую Республику к 1953.[2]
Документ № 3 был подписан Сталиным 13 февраля 1953 года, формально положив начало разработке межконтинентальной ракеты. Как свидетельствует документ, рассматривались варианты как с баллистическими, так и с крылатыми ракетами. В очередной раз ведущей организацией назван НИИ-88 во главе с Сергеем Королевым.
В документе № 4 от 25 ноября 1953 г. впервые указывается установка ядерной бомбы на ракету, «стратегическую» ракету, известную как Р-5.[3] В этом письме Вячеслава Малышева, нового руководителя разработки советских стратегических вооружений (официально он занимал должность министра среднего машиностроения), Георгию Маленкову и Никите Хрущеву конкретно содержится призыв к ракете с ядерной боеголовкой, которая могла бы поразить Европу, Ближний и Средний Восток.
Восток и Япония.
Документ № 5 — постановление правительства от 12 февраля 1955 г., которым утверждено формирование нового полигона для испытаний межконтинентальных ракет, как баллистических (Р-7), так и крылатых (Бурья). и Буран). Этот полигон, находившийся в Казахстане в районе города Тюра-Там, впредь назывался Научно-исследовательским и испытательным полигоном № 5 (НИИП-5), а затем космодромом Байконур. В конечном итоге он стал родиной советской космической программы, поскольку с этого полигона стартовали и спутник, и Юрий Гагарин.
Документ № 6 — письмо на имя Никиты Хрущева от Василия Рябикова (промышленный руководитель программы баллистических ракет большой дальности) и Главного конструктора Сергея Королева с отчетом о ходе разработки Р- 7 межконтинентальных баллистических ракет (МБР). В письме от 10 апреля 1957 года говорится, что первый запуск с Тиура-Тама неизбежен.
Документ № 7 представляет собой рапорт нескольких руководителей предприятий, военных и главного конструктора Сергея Королева Никите Хрущеву с отчетом о результатах первого пуска МБР Р-7, осуществленного 15 мая 1957.
2. Затрагивания санузла.


21 СП 54.13330.2022.
и где у каждого будет свое личное пространство. В таком жилье можно создать более-менее комфортные условия проживания даже для семьи с детьми;
Искренне хотят помочь создать дома настоящий рай, где можно полноценно отдохнуть и расслабиться;
Специалисты всегда сдают проекты в оговоренные в договоре сроки;