Проект однушки 40 кв м: Дизайн однокомнатной квартиры 40 кв.м.
Дизайн однокомнатной квартиры 40 кв.м.
Восхищаться огромными домами с шикарным дизайном, проживая при этом в небольшой квартире — многим знакомая ситуация. Но суровая реальность такова, что не все могут позволить себе жилье с большой площадью, отдавая предпочтение малогабаритным пространствам. Современный дизайн интерьеров продолжает доказывать, что это — не такой уж плохой вариант. Даже в однокомнатной квартире в 40 кв.м. можно создать уютное и комфортное «гнездышко», а мы расскажем о том, как это осуществить.
Особенности дизайна «малогабариток»
Квартиры с маленькой площадью — особый «клиент», который требует соответствующего подхода. Для начала, необходимо определить, кто будет проживать в апартаментах: молодой холостяк или многодетная семья? В первом случае отлично подойдет пространство с открытой планировкой, в котором нет необходимости оформлять отдельные приватные зоны.
Далее следует определиться со стилистикой. Маленькая квартира здесь также выдвигает особые требования. Лучше отдать предпочтение стилю, который не предполагает большое количество мебели и декора — они «съедают» драгоценные метры и без того небольшой комнаты. К примеру, классический стиль или прованс будут выглядеть нелепо, а вот минимализм или лофт способны расширить пространство и подстроиться под специфику планировки.
В современном дизайне интерьеров уже существует множество ловких приемов, которые позволят визуально увеличить небольшую площадь. К примеру, зеркальные поверхности создают эффект «второго измерения» и словно продлевают комнату. Светлая цветовая гамма не создает границы, в то время как темные тона наоборот — могут сузить квартиру. Но это не значит, что нужно бояться черный цвет и всячески его избегать — при грамотной планировке он может придать интерьеру зрелое ощущение, не влияя на пространство.
Обладатели высоких окон обязательно должны воспользоваться этим преимуществом и, по возможности, не создавать преград для естественного света — лучше, если он заполнит всю комнату.
Небольшой совет напоследок — не стоит забивать квартиру лишними вещами, а лучше обойтись только самым необходимым.
Однокомнатные квартиры 40 м2 — фото
Для лучшего закрепления материала, предлагаем вам ознакомиться с яркими дизайн-проектами квартир, в которых воплотились все вышеперечисленные рекомендации.
1. Стильный дизайн однокомнатной квартиры 40 кв.м.
Дизайнерам волгоградской студии Solo Design удалось стильно и гармонично оформить эту «однушку». На небольшой площади в 40 квадратных метров они разместили спальню, кухню, гостиную и рабочую зону, воспользовавшись принципом зонирования.
Благодаря отсутствию массивных перегородок и стен, квартира визуально кажется больше и не создает ощущение замкнутости. Спальня отделяется от остального пространства шторой, при этом являясь его продолжением.
Принцип open space позволил воспользоваться приглушенной темной цветовой гаммой даже в жилье с такой небольшой квадратурой. Но в данном случае серые стены и черные предметы мебели вместо того, чтобы уменьшить пространство, создают уютную атмосферу. А большие окна пропускают естественный свет и наполняют помещение «воздухом».
2. Брутальный лофт в однокомнатной квартире 40 кв.м.
Еще один пример того, что не стоит бояться темных оттенков. Объект расположен в Москве и представляет собой однокомнатную квартиру 40 кв.м. с элементами лофта. Проект был разработан дизайнерской студией Int2Architecture, перед которой стояла непростая задача: в короткие сроки создать стильное и презентабельное жилье для сдачи в аренду.
Ограниченный бюджет только усложнял реализацию, но дизайнеры использовали нестандартные решения и оформили жилье максимально стильно и дешево.
Покраска кирпичных стен, открытая проводка, бетонный потолок — все это позволило сэкономить на отделке и приблизиться к стилистике лофта.
В интерьере присутствуют необычные винтажные предметы мебели — вроде обеденных стульев или подстолья для раковины, которые были куплены на блошином рынке.
В квартире практически нет массивных перегородок и все жилые зоны представлены в одном пространстве. Но из-за этого не создается ощущение нагромождения предметов — благодаря целостной стилистике и отказа от традиционной большой кухни.
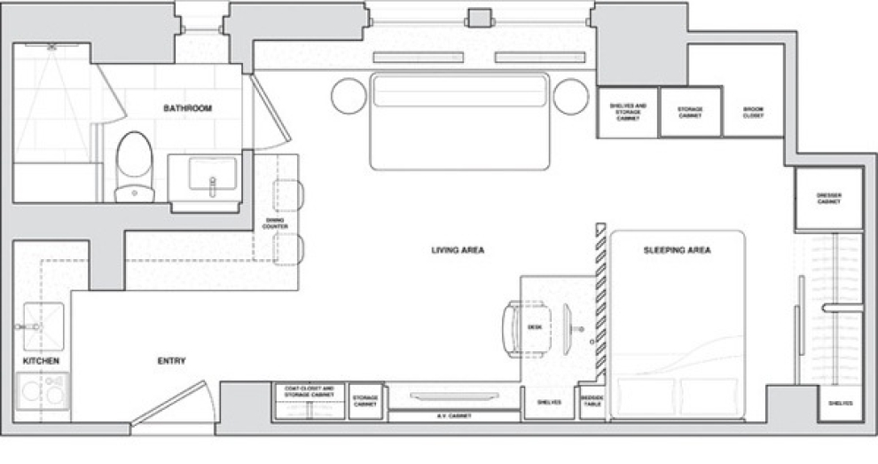
3. Уютное гнездышко — дизайн однокомнатной квартиры 40 кв.м.
В отличие от предыдущего проекта от Int2Architecture, эта квартира выполнена в светлых тонах и оформлена для комфортного проживания молодой пары.
Дизайнеры использовали принцип рационального зонирования, благодаря которому удалось создать зоны кухни, столовой, гостиной, спальни и кабинета — и все это, напомним, в маленькой однокомнатной квартире на 40 кв.м.!
В проекте реализовано множество интересных идей для небольшой площади. К примеру, спальню с кабинетом объединили в одну зону и разместили на пьедестале, который включает дополнительные места для хранения вещей.
Высокая перегородка отделяет приватную область от жилой, но не создает преград для проникновения естественного света. Мобильная зона столовой легко перемещается, открывая дополнительное пространство.
4. Дизайн однокомнатной квартиры 40 кв.м. на мансарде
Чудесный проект, реализованный дизайнером Евгенией Островской — это квартира в «Даниловской мануфактуре» в Москве. Задачу просторного оформления подобного жилья усложнял тот факт, что это мансарда, а значит часть помещения сужается за счет наклонного потолка. С другой стороны, чердачное пространство выглядит уютно и открывает новые возможности для планировки.
Стиль лофт для оформления интерьера был выбран не просто так: он отлично вписывается в атмосферу мансарды и позволяет вписать функциональные и практичные детали. Так, для расширения площади использовали мебель-трансформер. Рядом с входной дверью расположена система для хранения вещей, которая перетекает в зону кухни. Наличие зеркал на шкафах визуально расширяет пространство.
Дизайнеру удалось разместить здесь все необходимое для жизни, и даже камин — казалось бы, непозволительную роскошь для такой малогабаритной «однушки».
5. Однокомнатная квартира 40 кв.м. для семьи из трех человек
Все началось с перепланировки: в единственной комнате был возведен подиум, где расположилось спальное и рабочее место для одного из детей. Зона обособлена с помощью функциональных шкафов разной высоты, а сама возвышенность также подходит для хранения вещей.
Для второго ребенка утеплили лоджию и превратили ее в место для отдыха и работы.
Раскладной диван в ночное время хозяйка использует в качестве кровати.
Светлые тона и многоуровневая система освещения наполняют интерьер этой квартиры простором и разнообразием, визуально увеличивая небольшую площадь.
6. Современная однокомнатная квартира 40 кв.м. – дизайн интерьера
Украинская студия Rover Building Company показала, что можно создать функциональный и яркий интерьер даже в малогабаритной однокомнатной квартире. Красочный дизайн, а также уютные элементы декора «оживляют» пространство и позволяют забыть о его площади – всего-навсего 40 м2.
Студийная планировка — отличный вариант для жилья такого типа. Отсутствие стен компенсируется низкими перегородками.
Как и в других проектах, спальню здесь поместили на пьедестал, оградив ее стеклянной стеной. С одной стороны, такая конструкция не создает препятствий, а с другой — прочерчивает плавную границу между жилой и личной зонами.
7. Дизайн однокомнатной квартиры 40 кв.м. в Киеве
Объект расположен в киевском ЖК «Комфорт Таун» и представляет собой небольшую квартиру-студию площадью 40 кв.м. Над проектом работала украинский дизайнер Ирина Сазонова.
Приватная зона здесь может выступать в качестве отдельной комнаты благодаря плотной шторе и многофункциональности помещения.
К слову, для экономии драгоценных квадратных метров дизайнер старательно избегала громоздких шкафов и ящиков, отдавая предпочтение открытым полкам и скрытым местам хранения.
8. Однокомнатная квартира-трансформер площадью 40 кв.м.
Итальянская дизайн-студия Brain Factory создала проект однокомнатной квартиры 40 кв.м., концепция которой основана на возможности изменения планировки в любое время в течение дня.
Основа интерьера этой квартиры — детально продуманный модуль, который легко превращается в компактный кухонный стол, обеденный стол или рабочую зону.
Не менее важный элемент — в буквальном смысле подъемная кровать, которая поднимается благодаря прочным лентам и прячется в специальной нише на потолке.
Видео: Дизайн однокомнатной квартиры 40 м2
Дизайн однокомнатной квартиры 40 кв.
мДом или квартира – это место, куда приходим с работы, где отдыхаем от суеты, и, уют которого, создаёт настроение и придаёт сил для следующего дня. Если дом большой, то в одной комнате можно разместить кабинет, в другой детскую, в третьей спальню, а гардероб с кухней займут немалый метраж и почётное место. А что же делать, если квартира небольшая, но всё нужно обустроить – ту же гардеробную и обеденную зону, выделить место для отдыха и приёма гостей? Дизайн однокомнатной квартиры 40 кв. м. – это, прежде всего, совокупность удобства, практичности и экономии пространства на небольшом метраже. Есть жилая недвижимость, площадью 100 кв. м. и более, но есть и квартирки менее 30 кв. м. Так что, 40 кв. м. – это не так уж и мало, если правильно определить приоритеты и использовать максимум свободного пространства, не утяжеляя его и оставляя видимость внутреннего объёма.
Что необходимо предусмотреть до начала ремонта
- Выбрать общий стиль квартиры или, хотя бы, общий элемент.
Это может быть квартира в городском стиле: чёткие линии, комбинированное покрытие для стен, деталь, переходящая из комнаты на кухню, например, определённые вид цветка или тема «Парижа», «Стран мира». Очень эффектно смотрится минимализм в оформлении, но это подходит, если в квартире проживает 1-2 человека. - Определиться с количеством необходимых зон: для отдыха, работы, приготовления еды, приёма пищи, туалета и ванны. Продумать количество и расположение розеток, предусмотреть необходимость теплого пола на балконе и в местах, покрытых кафелем или керамогранитом. Обязательно наличие розеток во всех комнатах, включая коридор и туалет, в идеале во всех углах, потому что даже самое идеальное моделирование и дизайн, столкнувшись с реалиями исполнения, потребует корректировки и постоянного контроля, а может и кардинальных изменений расположения отдельных элементов.
- Запасаясь строительными материалами «впрок», до начала этапа, на котором они пригодятся, обязательно сохраняйте чеки из магазинов для возврата остатков.
При покупке, убеждайтесь, что позже будет возможность докупить недостающее. Распродажи и акции на качественный материал – это замечательно, но где потом брать дизайнерскую плитку, часть которой, по неосторожности, испортил мастер, если вы забрали остатки, а новую заказывать и ждать не одну неделю. - Очень внимательно относитесь к выбору организации, которая будет заниматься дизайном и ремонтом: прочитайте отзывы на сайте, ознакомьтесь с их работами – хотя и это не даст 100% гарантии качества выполненной работы. Со «знакомыми знакомых» лучше вообще не связываться, «Замечательный мастер, который дёшево, почти даром, сделал идеальный ремонт тёте моей знакомой…» — это утопия, может и повезёт, но цены будут незначительно ниже, а контроля, если проект сложный, намного больше. Идеальный проект и ремонт – сделанный самостоятельно, никто не знает так хорошо Ваши потребности и видения понятия удобства и комфорта квартиры.
- Предусмотреть альтернативное место проживания на время ремонта.
Сроки предполагаемой работы очень часто отличаются, причём в сторону увеличения. Захотели ламинат, а был линолеум — будьте готовы к тому, что появится необходимость ровнять пол, а это плюс месяц. Решили установить пол с подогревом, а проводка старая – меняем проводку и увеличиваем срок ещё на неделю! Дизайн и ремонт – дело творческое, да ещё и приносящее много пыли и грязи, в которой жить просто невозможно.
Дизайн
Приступая к преображению однокомнатной квартиры, нужно чётко знать, что хотели бы получить в итоге: холостяцкую квартиру — место для отдыха от работы и приведения себя в порядок или многофункциональное пространство – для постоянного времяпрепровождения большого количества людей. В случае, когда есть ребёнок, важна организация игрового пространства и соблюдение условий безопасности. Одна комната, при грамотном распределении мебели, может стать минимум двумя, максимум несколькими самодостаточными зонами. При наличии балкона в комнате, можно создать идеальный вариант для рабочей или игровой зоны, при условии соответствующего утепления, а для детей, наличия тёплого коврика или подогрева пола.
Не стоит забывать про встроенную мебель: шкаф до потолка очень вместителен, кроме распределения в нём повседневной одежды и верхней, можно предусмотреть такие варианты, как:
- вращающийся шкаф для обуви;
- откидная гладильная доска;
- рабочее место в одном из отделов;
- место для гладильной доски и сушилки, пылесоса;
- крепление на стене для велосипеда, другого спортивного инвентаря, при отсутствии свободного балкона, подвала, но наличии активного образа жизни.
Важно! Продумывайте мелочи, используйте пространство грамотно!
Убираем лишние стены
Дизайн квартиры-студии существенно отличается от простой однокомнатной квартиры. Такая планировка придаёт помещению стиль, но требует более тщательного дизайна и продумывания элементов. Идеальный вариант для одного или двоих и широкие возможности для реализации своей фантазии. Сначала определяемся с необходимым, тем, что проблематично переносить в другое место – санузел.
Далее, рассматриваем выделение вариантов зон таким образом, чтобы увеличить функционал: разбиваем на сектора, при необходимости делаем декоративные перегородки. Варианты расположения зон зависят от формы студии: квадрат, прямоугольник или нестандартная форма, например, трапеция. Если дизайн квартиры предусматривает проживание только одного человека, можно значительно сэкономить пространство, не придумывая где разместить двуспальную кровать, отдав это место для гардеробной. Идеи и основные закономерности интерьера для студии 40 кв. м., в зависимости от формы квартиры:
| Квадрат | Прямоугольник | Нестандартная (трапеция, «г» образная) |
| Выделение круглой зоны в центре – для спальни или гардеробной | Комнаты общего пользования располагают ближе к входу | Заполнение углов функциональными элементами, визуальное выравнивание пространства |
| Выделение дальнего квадрата для зоны отдыха, а совмещённого с ним – для гостиной | Спальню, рабочую зону организуют в глубине квартиры | Обыгрывание асимметрии |
| Деление на 2 равных прямоугольника: комнат общего пользования и обширной гостиной | Используем небольшое закругление углов для расширения пространства | Деление «г» образной квартиры на 3 квадрата – дальний из которых представляет место для спальни |
Зонирование или решение всех проблем
Деление пространства на рабочие зоны, обладающие высоким функционалом, это давно не редкость и не мода, а необходимость.
Чем меньше квадратура жилого помещения, тем больше задач стоит перед дизайнером, планирующим интерьер однокомнатной квартиры 40 кв. метров. Основная сложность не в том, чтобы равномерно распределить пространство, а в том, чтобы это распределение было максимально эффективным, продуманным. Делая зонирование пространства самостоятельно, необходимо особое внимание уделить определению тех функций, которые должна выполнять квартира, обязательно заранее обговорить со всеми членами семьи, какими элементами нужно обеспечить каждого из них. При планировке нужно учитывать особенности квартиры: расположения канализации, вентиляционных шахт.
Основные элементы зонирования:
- Прихожая. Данная часть комнаты должна как минимум состоять из придверного коврика, вешалки для верхних вещей. Не лишним будет зеркало с пуфиком, сейчас очень популярны пуфики с полками для обуви, ещё один метод экономии пространства. Уют придадут ключница и оригинальные вешалки в проёмах дверей.
Коридор.
По возможности сводим эту часть квартиры к минимуму или убираем вообще – пустая трата пространства не несущая никакого функционала. - Ванная комната. Туалет с ванной, как правило, в небольшой квартире совмещён, но имеет смысл отделить унитаз от ванны небольшой перегородкой в гигиенических целях. При проживании в квартире более 1 человека, есть смысл зонирования санузла на 2 самостоятельные площадки, делая ванну проходной частью. Расположение менять не практично.
- Кухонная зона. Место приготовления еды и кухонного гарнитура – только по стене, где расположена вентиляционная шахта. Хорошая вытяжка на кухне – жизненно необходима, если при этом нет прямого доступа к балкону или окошку, то вытяжка становится единственным способом избавления от сторонних запахов.
- Гардероб/шкаф для одежды. Какой бы большой шкаф или гардеробная не была, со временем в нём не останется места, поэтому выделяем для него максимум возможного места. Иногда, есть смысл, вместо одного громоздкого шкафа, сделать 2-3 небольших, в разных сторонах квартиры — это будет дороже, но удобнее.

- Спальня. Если есть желание – можно даже позволить себе двуспальную кровать. При грамотном размещении об её существовании будет знать только хозяин квартиры: раздвижные двери, стеллажи, декоративные перегородки – вариантов комфортного уединения много.
- Рабочая зона. Как минимум – откидная полка для ноутбука, как максимум полноценное рабочее место метр на метр со столом, полками, стулом. Стоит учесть, что это должно быть не смежное с кухней или с ванной место, а более уединенное, максимально удалённое от мест общего пользования.
- Детская. В понятии детей, детская – это всё пространство помещения. При дизайне интерьера однокомнатной квартиры 40 кв. м. можно пожертвовать гардеробной, ограничившись шкафом, но выделить минимум 8 кв.м. для отдыха и игр ребёнка.
Важно! Неучтённая потребность кого-либо из членов семьи, может свести на нет все прекрасные задумки и оригинальные решения.
Особенности планировки для семьи с ребенком
Дизайн однокомнатной квартиры 40 квадратных метров, если есть ребёнок, обязывает выделить ему свой уголок.
Даже если пока что он ещё совсем малыш, лучше это предусмотреть заранее, чем через пару лет заново делать ремонт. Для полноценной семейной жизни необходимо чёткое деление пространства для родителей и комнаты для ребёнка. Разные проекты, предлагающие двуспальные кровать – для родителей с ребёнком, совместное проживание, похоже, их исполнители просто не имели детей. Наиболее удачным будет расположение зоны родителей и детей в противоположных углах квартиры: уважение, внимание к собственной территории, максимально возможное шумопоглощение, существенно уменьшит количество. Вполне уместным будет использование гостиной в качестве комнаты родителей: при необходимости есть место, где принять гостей, а ночью имеется уединенный уголок для отдыха и сна. При такой планировке гостиная-спальня родителей и комната ребенка не должны быть проходными.
Гостиная
Как правило, стильная гостиная – это минимализм. Поэтому при проектировании 40 кв. м. квартиры можно уделить ей не так много места.
Если мы делаем гостиную частью кухни, то органично будет смотреться перегородка в виде барной стойки. В случае выделения гостиной в отдельную зону, она будет в себя включать минимум диван, телевизор, аудио-, стерео- системы, неплохо предусмотреть HDMI шнур для просмотра фильмов через интернет. Журнальный столик в небольшой гостиной лучше не использовать или, если очень хочется, ограничиться небольшим, символическим предметом интерьера. Коврик в гостиной перед диваном придаст уют, расширит пространство. Стены разного формата и текстуры тоже будут уместны, позволят визуально выиграть немного места. Встроенные полочки, разное по типу, цвету освещение — это способы придать гостиной стиля, сделать время, проведённое в ней максимально приятным и комфортным.
Спальня
Место для полноценного отдыха – это необходимость. Есть приверженцы ночного сна в гостиной, но даже они признают, что двуспальная кровать с ортопедическим матрасом намного привлекательнее долговечнее даже самого удобного, большого дивана.
Постоянное раскладывание и собирание спального места в момент, когда хочется просто отдохнуть, закутавшись в одеяло, выматывает. Выбирая дизайн проект квартиры 40 кв. м. сначала осознаём необходимость спальни, потом убеждаем в этом тех, кому нужнее гардеробная или коридор. Далее, априори, спальня должна быть уединённым местом. Даже если предполагается, что человек будет жить один, никто не застрахован от приезда родственников, друзей. А если в квартире планирует жить молодая пара, то «уютное гнёздышко» — просто необходимость. Для экономии пространства очень удобно использование кровати с подъёмным механизмом. Рассмотрим основные варианты отделения спальни, хотя это может быть и только кровать с полочками или панно над головой:
- Раздвижная дверь. Традиционная будет неудобна в открывании, забирать много места.
- Стеллаж/перегородка с полками. Практично, удобно — при размещении кровати и стеллажа нужно предусмотреть то, что кровать размещается так, чтобы при входе в предшествующую комнату стеллаж максимально закрывал кровать, но не перегружал комнату.

- Шторы. Прошлый век? Вот и нет! Не только в одежде мода возвращается.
- Подиум с выдвижными шкафами. Забирает много места, но смотрится эффектно, стильно.
- Конструкция в виде кровати в гостиной над диваном. Экономит место, а с эстетической стороны зависит от исполнения и индивидуальных предпочтений.
- Стеклянное отделение спальни и гостиной. Функционал символический, но смотрится свежо, смело.
- Декоративная перегородка. Обычно, выполнена из дерева, может быть с элементами стекла.
Кухня
Место, где Вы будете готовить — это очень важная часть квартиры. Пространство для приготовления еды предполагает своё, внутреннее зонирование. Если кухня совмещена с гостиной, то особое внимание стоит уделить качественной вытяжки, лучше даже для большей площади, чем заявлено у производителя. Расположение кухни привязано к местонахождению вентиляционных шахт, при проектировке вариантов кухни это обязательно нужно учитывать. Обычно их расположение показано в плане квартиры, так же эту информацию можно узнать у управляющей компании или у застройщика, если готовится проект кухни новостройки.
Шкафы лучше делать «под потолок», увеличивая их вместительность, практичность. Между мойкой и варочной поверхностью оставляем рабочую поверхность, заранее предусматриваем расположение электроприборов, розеток для них. «Кухонные островки» смотрятся очень свежо и оригинально, могут существенно сэкономить пространство при правильном расположении.
Ванная комната
Сделать ванную комнату в однокомнатной квартире практичной и удобной вполне возможно, даже нужно. Унитаз ставится ближе к канализации, но за безгласное правило это брать не стоит: его можно разместить в другом месте следя за достаточным углом наклона слива. Инсталляция – это стильно, но уже совсем не ново, позволяет экономить место, смотрится более эстетично. Если решаем отделять перегородкой унитаз от ванны, то можем, либо ограничиться символической перегородкой, преследующей гигиенические цели, или делаем закрытый полноценный туалет с проходной ванной. Если есть возможность и необходимость, сразу предусматриваем место для водонагревателя, хотя бы на 30 литров или проточного.
По цвету актуален кафель пастельных тонов и оттенков серого, свежо смотрится мелкая шахматная клетка, красно-чёрная шотландка. Для оптимизации пространства ванной комнаты пользуемся следующими возможностями:
- Размещение стиральной машины под раковиной. Квадратная раковина с коробом для стиральной машинки сэкономит место, будет удобным решением.
- Пространство над унитазом заполняем шкафом или эргономичными полочками. Предусматриваем место для веника, принадлежностей за уходом пола.
- Зеркало. Большое зеркало над раковиной расширит пространство, придаст стиля. Если хотите использовать полочки с зеркальной дверцей, стоит предусмотреть их небольшую глубину.
- Трубы прячем в короб, который зашиваем и делаем полочки, не забывая про реквизиционное окошечко.
- Предусматриваем место для грязного белья. Такие мелочи часто выпадают из внимания, при использовании, возникают бытовые вопросы с нарушением внешнего вида.
Объединение с балконом – расширяем горизонты
Балкон или лоджия – это прекрасная возможность увеличить метраж квартиры.
Проведя качественное утепление, в идеале: обогрев пола, вынос батареи на утеплённый балкон, можно подумать о назначении дополнительных 2 кв.м. и более полезной площади. Если нет возможности установить пол с подогревом, то выручит коврик с длинным ворсом.
Рассмотрим основные варианты объединения с балконом, их функциональное назначение:
- Рабочее место. Полноценная изолированная зона для работы или занятий, можно отделить раздвижными дверьми.
- Кухня/часть кухни. Делим кухню на две зоны: основная — для приготовления еды, в квартире, вторая – для приёма пищи на балконе, или в проёме между балконом и кухней. Возможен другой вариант – вынести холодильник или часть кухни с духовым шкафом на балкон.
- Бар. Барная стойка, мини бар, вид на ночной город – романтичное, расслабляющее место.
- Зона отдыха. Диванчик или кресло с откидной полочкой для ноутбука позволит уединиться, отвлечься.
Важно! Даже при самом качественном утеплении балкон не подойдёт для спального места в холодное время года.
Рассмотрим несколько проектов
Квартира-студия на 40 кв.м
Данный вариант квартиры имеет прямоугольную форму. Спальное место расположено с дальней от входа стороны, перегородкой служат жалюзи. Гостиная объединена с рабочим местом. Бросается в глаза детали из светлого дерева, которые объединяют и делят на сектора квартиру одновременно. Используя пастельные тона в интерьере необходимо разбавлять их строгость яркими деталями: подушками, посудой, цветными вазочками, картинами или фото. Барная стойка в гостиной — практичный вариант. Большое зеркало в ванне увеличивает пространство, квадратная раковина с тумбой даёт возможность вмесить в неё и полотенца с одной стороны, а туалетную бумагу с другой. Особое внимание стоит уделить изолированному душу — это гигиенично и стильно. В ванне преобладают белый, серо-бежевые цвета. Квартира удивляет обилием различных шкафчиков, отделов. Довольно практичный, стильный вариант.
Открытая планировка квартиры 40 кв.
м с прозрачными перегородкамиЕщё одно сочетание серого цвета и дерева – стильная классика! Большая площадь с немалым функционалом выделен под ванную комнату. Эффектный серый рисунок на стенах в сочетании с белой плиткой ещё раз убедят Вас в беспроигрышности данного сочетания цвета. Один из редких вариантов с вместительной прихожей, совмещающей в себе гардеробную. Большая часть квартиры представляет собой две зоны: первая — кухня и обеденная, вторая — рабочая и спальня, представленная возвышением на подиуме. Дизайн квартиры умышленно немного небрежен: хаотично висящие лампы над рабочей зоной, разноформатные картины над изголовьем кровати. Кровать от дивана отделяет невесомая стеклянная стена. Очень интересен выбор цвета напольной поверхности рядом с диваном — яркие акценты, приносящие жизнь в интерьер. Фартук на кухне соответствует общей стилистике квартире, продолжая тему асимметрии.
Квартира в стиле «лофт»
Черпаем вдохновение из стиля «лофт»! Ремонт в новостройке — очень затратно, особенно для молодых людей, только начавших самостоятельную жизнь.
Стены под кирпич в сочетании с серыми рельефными поверхностями. Минимум сложных конструкций, использование обновлённой старой мебели и вещей. При этом, в данном варианте довольно вместительная кухня с эффектным массивным высоким деревянным столом с барными стульями. В отдельной зоне расположена спальня. Со стороны может показаться, что интерьер очень простой, небрежный, но несмотря на бросовость материалов из которых изготовлены дизайнерские вещи, квартира не смотрится дёшево, а выглядит молодёжно. Довольно стандартная ванная комната с душевой кабиной и инсталляцией, о стиле «лофт» напоминает лишь декорированная кирпичом стена и пастельные цветовые оттенки.
Квартира для троих
Вариант для семьи с двумя детьми. В данном случае зонирование, из-за большого количества проживающих, пришлось провести, ориентируясь не на потребности, а необходимый минимальный функционал. Балкон утеплили, обустроили под рабочую зону одного из детей. Для второго ребёнка сооружен подиум с кроватью, столом.
Предусмотрено огромное количество вместительных шкафов. Оригинальным элементом является чёрная доска с полками на кухне. Маленькая довольно строгая современная двухсторонняя кухня с зеркальным фартуком и светильниками в виде различных бокалов. Очень актуальное покрытие пола, с модным чёрно-белым мелким рисунком. Таким же рисунком оформлена ванная комната, выдержанная в стиле «минимализм». Бросаются в глаза оформленные стены, отсутствие свободного пространство, что наоборот, зрительно увеличивает комнату.
Проект квартиры с трансформирующейся мебелью
Просто гениальный вариант дизайна квартиры. Огромное пустое пространство, иллюзия минимализма в помещении. На деле очень вместительные шкафы с встроенным диванчиком в большой комнате, такими же огромными шкафами с другой стороны, нишей для телевизора. Перегородка между комнатой и кухне трансформируется в рабочий стол с одной стороны и обеденный с другой. Большая кровать с подъёмным механизмом довольно органично вписана в потолок.
Деревянная перегородка дополнена стеклянными раздвижными дверьми. Сочетание белого и бежевого разбавляется ещё одним, зелёным оттенком. Естественные материалы и цвета гармонируют, подчёркивая внешний минимализм квартиры. Интересные решения с правильной геометрией расширяют пространство. Примечательно, что стол для работы трансформируется в более крупный — для приёма гостей.
Дизайн квартиры в скандинавском стиле
Яркая особенность дизайна этой квартиры — кровать с полками над диваном. Такой своеобразный чердак освобождает место на полу, визуально не очень сильно поглощая пространство, за счёт белого исполнения стен, а так же светлого пола. Стена между комнатой и кухней имеет крупное окно. Детали интерьера крупные, более тёмные, но выдержанные в цветовой гамме. Кухня продолжает общий стиль квартиры. Выделяются стулья и люстра. Такая смесь современности и традиционности вызывает неоднозначное впечатление. Надо обладать утончённым вкусом, чувством стиля, чтобы самостоятельно оформить квартиру в таком виде, избежав лишнего, найдя баланс двух эпох.
Ванная комната придерживается того же строгого стиля: серый пол, белая плитка с серой затиркой. Общий пол, без выделения душевой кабинки — увеличивает пространство.
Из однушки делаем двухкомнатную квартиру
Это один из вариантов того, как можно грамотно организовать пространство для семьи с двумя детьми. Ещё и смело играя с цветом. Дизайн квартиры предусматривает большое количество шкафов в разных углах квартиры. Кухня и гостиная совмещены в студию. Спальня общая, но делится на зону отдыха родителей и отдельную двухъярусную кровать детей. Совместная спальня выполнена в «морском» стиле. Гостиная более элегантная воздушная, предпочтение отдаётся тёплым тонам и лёгким конструкциям. Маленькая светлая кухня разбавлена ярким фартуком, придающим сочность комнате. Даже крупные часы на стене подчёркивают некую легкомысленность и теплоту помещения. В таких же теплых тонах прихожая. В ванной комнате максимально расширяется пространство, заполняясь зеркальными шкафчиками над раковиной, стиральной машиной.
Дизайн однокомнатной квартиры 40 кв. м: 3 готовых проекта
Команду GD-Home вдохновляют модерновые проекты, которые выглядят стильно и функционально несмотря на дефицит площади. Мы решили поделиться не только фото 3 прекрасных небольших квартир, но и несколькими полезными идеями, которые там использованы.
Однокомнатная квартира — не приговор
Планируя дизайн однокомнатной квартиры до 40 кв. м всегда возникают трудности с оформлением. Необходимо функционально зонировать пространство, не ошибиться с выбором цветов и обустроить достаточно мест для хранения. Последний пункт часто является уязвимым местом, который заставляет со временем захламлять пространство.
Дабы этого избежать, необходимо продумывать системы хранения на этапе ремонта. Например, если есть возможность поставить большой шкаф-купе в прихожей или длинном коридоре, обязательно этим воспользуйтесь.
Подбирайте модель под самый потолок, даже если придется ставить стул, чтобы достать до верхней полки. Это все же лучше, чем копить на этом месте пыль. Такие шкафы кажутся довольно громоздкими, поэтому, чем больше модель будет сливаться ос стеной, тем лучше. Можно заказать зеркальные дверцы, тем самым визуально расширив комнату.
Скандинавский дизайн однокомнатной квартиры (40 кв. м)
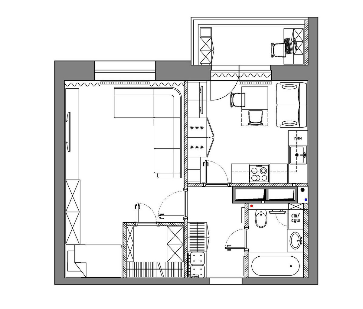
Создать этот уютный и функциональный дизайн однокомнатной квартиры (40 кв. м) удалось студии Aiya Lisova Design. Была выполнена перепланировка, обустроена спальня и гостиная в одной комнате, оформлена стильная кухня. В результате получился довольно просторный интерьер для молодой девушки. Учитывая скромные габариты квартиры, оформить ее в минималистичном скандинавском стиле было правильным решением.
Проект квартиры № 1
В квартире на фото была выполнена перепланировка большой комнаты, за счет чего удалось выделить место для отдельной гардеробной, вход в которую обустроен в прихожей. Перестройка затронула и ванную с туалетом, теперь это не два тесных помещения, а одна удобная комната. Для стиральной машины и бытовых предметов была выделена отдельная закрывающаяся зона в прихожей.
Комфортный дизайн гостиной в квартире 40 кв. м
- В качестве базовых цветов для комнаты выбраны разные оттенки бежевого. Благодаря этому интерьер выглядит воздушным и гармоничным. В цвет к отделке подобраны абажуры светильников, шторы и ковер на полу.
- Визуально увеличить пространство комнаты удалось за счет зеркала. Это старый и проверенный способ расширения пространства, который всегда безотказно работает. Оно закреплено на каркасе, внутри которого спрятано розетка и проводка от телевизора.
- Телевизор подвешен на поворотном кронштейне, поэтому смотреть фильмы можно как лежа на кровати, так и на диване.

- Небольшого дивана для хозяйки квартиры вполне достаточно. Он выглядит аккуратно и не загромождает пространство.
- Над зеркалом оборудована светодиодная подсветка, добавляющая тепла и уюта стильному интерьеру.
- Для того чтобы выделить зону спальни, дизайнеры использовали высокое изголовье, подобрав в цвет к нему покрывало и подушки.
- Украсить комнату было решено фотографиями Нью-Йорка, часто посещаемого города хозяйкой квартиры по работе, а также мотивирующими словами Dream Big. Декоративные статуэтки и орхидеи также добавляют уюта.
Дизайн кухни в квартире 40 кв. м: детали
- Комбинация белого, серого и дерева в дизайне однокомнатной квартиры (40 кв. м) всегда выглядит выигрышно. Для создания стильного интерьера кухни, эти цвета подходят очень кстати.
- Кухонный гарнитур расположен Г-образным образом. Нижние шкафчики выкрашены в цвет серого дуба, верхние и столешница выполнены в белом цвете.

- За счет использования глянцевых поверхностей, кухня кажется более просторной и интересной. Фартук сделан из закаленного стекла с красивой фотопечатью.
- Для создания гармоничной атмосферы, дизайнеры спрятали холодильник и некоторую технику за фасадами шкафчиков.
- Круглая форма обеденного стола выбрана для того, чтобы нарушить прямоугольную геометрию комнаты. Выделить эту зону удалось с помощью подвесной лампы, напоминающей цветок.
- В кухне продумано и дополнительное освещение. Есть направляемые светильники и светодиодная подсветка, обеспечивающая освещение рабочей поверхности.
- На балконе установлен широкий деревянный подоконник и барные стулья. Эту зону можно использовать для принятия пищи или работы.
Как оформить маленькую ванную комнату
Детали по фото:
- Для того чтобы получить более просторное помещение, было решено объединить ванную и санузел. В результате они получили 3,6 кв. м.

- Вместо душевой занавески, была использована стеклянная перегородка, которая в отличие от занавески не разделяет пространство на части.
- Несмотря на то, что интерьер ванной выполнен в черно-белом цвете, комната не кажется маленькой. А все благодаря мозаике и встроенной подсветке под шкафчиком и над унитазом, которая делает это пространство более интересным.
Дизайн однокомнатной квартиры 40 кв. м: фото + идеи
Квартиры в скандинавском стиле всегда выглядят стильно и интересно. За основу стоит брать белый цвет, возможно светло-серый. Акценты расставляются при помощи черной или красочной мебели. Часто текстиль становится ярким пятном в светлом дизайне. Скандинавские квартиры тяжело представить без дерева. Оно может присутствовать в отделке или мебели. Еще одним атрибутом этого стиля является кирпичная кладка, которая в том или ином виде может присутствовать в интерьере.
Проект однушки № 2
Дизайн от студии INT2 architecture
- Кирпичная кладка может быть оголена и покрашена в белый / черный цвет.
Белый создаст легкую атмосферу, черный добавит брутальности. Используйте черный кирпич только для акцентирования внимания на одной из стен или ее участка. В любом другом случае, вы рискуете создать дизайн в стиле лофт. - Голая кладка может быть оставлена в первозданном виде, однако ее, как и кирпича, окрашенного в черный цвет, должно быть совсем немного.
- Можно создать имитацию кирпичной кладки при помощи фотообоев.
Разделение зоны отдыха и готовки с помощью барной стойки является отличным решением. Это не только удобно, но и практично. Для 2 – 3 человек такого обеденного стола вполне достаточно.
Стильный дизайн 1-комнатной квартиры (40 кв. м)
В однушках большая комната выполняет роль и спальни, и гостиной. В связи с этим существует два варианта подбора мебели. Наиболее популярным является покупка раскладного дивана, который при необходимости можно сложить. Это очень удобно, если в комнате проживает еще и ребенок. Второй вариант основан на обустройстве отдельного спального места.
Кровать можно поставить на подиум, где обустроить дополнительные места для хранения. При необходимости ее можно спрятать за шторой или возведенной перегородкой.
Как правило, маленькие квартиры принято оформлять в светлых цветах. Для того чтобы интерьер выглядел более интересно, можно сделать яркий акцент на диване или кухонном гарнитуре. Красочные кухни будут кстати при оформлении интерьера в стиле винтаж или прованс. Белые, черные или кухни из дерева подойдут для создания минималистичного дизайна, классического или скандинавского стиля.
Важно! Цветовой акцент стоит делать только на одной из зон. Или красочная кухня, или цветной диван.
Делая акцент на гостиной, можно получить более расслабляющую обстановку. Ведь кухня яркого цвета, которая будет постоянно бросаться в глаза, не у всех вызывает ощущение отдыха. В таком случае лучше подобрать гарнитур, который будет сливаться с отделкой стен, за счет чего станет практически незаметен.
Техника часто выдает место готовки, поэтому ее лучше спрятать за фасадами шкафчиков. От ручек на дверцах также лучше отказаться.
Притягательным элементом в таком дизайне может стать мебель в гостиной или элементы текстиля. Например, интерьер в молочно-кофейной гамме можно дополнить диваном насыщенного синего цвета.
С помощью текстиля можно легко и быстро сменить настроение в квартире. Оформленная в нейтральных цветах студия, заиграет совсем по-другому, если подобрать некоторые элементы в одном цвете. Например, бело-серый скандинавский дизайн станет более интересным, если добавить желтые шторы, плед на диван и торшеры на светильники в том же оттенке.
Каков должен быть дизайн спальни в квартире 40 кв. м?
Есть два пути решения вопроса спального места в маленькой квартире. Первый из них основан на совмещение зоны отдыха и спальни в одном месте, а второй – в оформление раздельных зон. Отдельно расположенная кровать избавит от необходимости постоянно складывать диван, при этом кровать займет несколько квадратных метров.
Дабы более рационально использовать площадь, можно расположить спальное место на подиуме, внутри которого хранить вещи. Изолировать спальню можно при помощи занавесок.
Как оформить дизайн квартиры-студии (40 кв. м)?
Популярным решением расширения пространства является оформление квартиры-студии, которая предполагает объединение жилой комнаты и кухни. Этот вариант подойдет для самостоятельно проживающего человека или пары, а вот семье с ребенком идти на такой шаг довольно рискованно.
Функции комнаты увеличиваются, а значит необходимо более тщательно подходить к вопросу зонирования. Расположение кухни останется прежним (в связи с коммуникациями), спальня-гостиная должна расположиться в противоположной стороне. Разделить их можно при помощи обеденного стола или барной стойки.
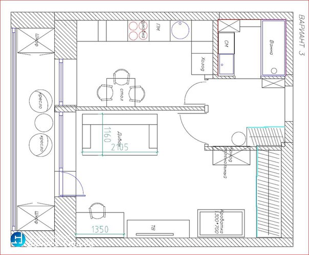
Проект квартиры № 3
Квартира имеет П-образную планировку, по центру которой расположена TV-зона. Благодаря этому удалось обустроить отдельное спальное место, которое при необходимости можно скрыть за шторами.
Диван расположен на расстоянии полуметра от окна, чтобы к нему можно было удобно подойти.
Дизайнер проекта Ирина Сазонова
В проекте на фото, зона кухни выделена при помощи плитки с ярким орнаментом. Это не только стильно, но и более практично.
В этом интерьере динамику задает синяя палитра. К тому же, мелкие элементы, в виде цветочков на шторах, коврика, диванных подушек, объединяют дизайн.
Красивый дизайн однокомнатной квартиры 40 кв. м: видео тур
Предлагаем вам взглянуть еще на один проект квартиры-студии, на этот раз из Канады, в которой удалось разместить кухню, гостиную и спальню в одной комнате.
Рекомендуемые статьи для тебя:
GD-Home – это маленькое удовольствие, что-то уютное и теплое. Почему мы стараемся для вас? Мы просто верим, что домашний уют способен сделать людей счастливее.
Дизайн квартиры 40 кв. м.
Особенности современного дизайна квартиры 40 кв. м. состоят в зонировании пространства с учетом функциональности и удобства проживающих в нём людей. Конечно, если в квартире один житель не обязательно проводить доскональное разделение функциональных зон. А для семьи с одним или двумя детьми обстановка в квартире должна соответствовать потребностям и желаниям каждого и быть продумана до мельчайших деталей.
Небольшая площадь в однокомнатной квартире представляет значительный недостаток при выборе дизайна интерьера. Однако можно прибегнуть к всевозможным ухищрениям в интерьере, чтобы избежать впечатления подавленности и загромождения.
Оглавление статьи:
Особенности оформления интерьера в однокомнатной квартире
Оформляя помещение, стоит отдать предпочтение светлым теплым оттенкам цветовой палитры, это поможет визуально его расширить.
Большую роль играет выбор освещения. Громоздкие люстры с обилием элементов зрительно опускают потолок.
Гораздо выигрышнее будут смотреться множество разноуровневых точечных светильников.
Зеркала и глянцевая мебель создают иллюзию продолжения пространства. Такой же эффект можно добиться с помощью фотообоев с перспективой удаления.
Обилие мебели и декора вызывают состояние захламленности. Лучше выбрать встроенную мебель она выглядит более компактно, при этом имеет хорошую вместительность.
Предпочтительно оформлять небольшую квартиру в стиле минимализма, хай тек, арт деко. Отличная идея совместить различные стили для зонирования пространства.
Использование мотивов южного Прованса, и Кантри разнообразят интерьер и внесут нотку тепла и уюта.
Распространенные решения перепланировки квартиры 40 кв. м.
Любой вариант дизайна однокомнатной квартиры 40 кв. м. разрабатывается с учётом индивидуальных пожеланий. Кто-то отдаёт предпочтение целостному помещению без стен. Некоторым достаточно условное разделение на зоны с помощью цветовых и осветительных приёмов.
Кому то необходимо личностное пространство для уединения с дополнительными перегородками.
Существует ряд наиболее востребованных решений для перепланировки квартиры:
- Совмещение балкона с основной территорией квартиры;
- Оформление студии за счет демонтажа стены между кухней и комнатой;
- Устройство подиумов, выбор двухуровневой мебели;
- Монтаж дополнительных гипсокартонных стен;
- Зонирование помещений с помощью элементов мебели: высокими книжными стеллажами, барными стойками, ширмами, раздвижными дверьми.
Воплощение подобных идей в реальность сложностей не вызывает. Большой ассортимент строительных материалов, всевозможного текстиля, разнообразной мебели может изначально привести в замешательство, однако огромный выбор фото дизайна квартиры 40 кв. м. помогут определиться с выбором.
Огромная популярность таких решений привела к одному единственному недостатку. Квартиры стали похожи одна на другую. Всё сложнее создать проект, который бы разительно отличался от остальных.
В этом случае вместо архитектурных изменений помещения лучше искать необычные решения, применяя стандартные материалы.
Далее акцентируем внимание на вариантах, которые редко используют для зонирования пространства.
Фитостена как разграничительный элемент
К неординарным решениям для разделения пространства на зоны можно отнести применение фитостены.
На сегодняшний день существует множество разнообразных вариантов фитостен. Производители предлагают единые и многоблоковые конструкции, которые могут быть стационарными или перемещаемыми. Снабжённые встроенной оросительной системой, по которой вода поступает к корням растения они не вызывают дополнительных трудностей связанных с уходом за растениями.
Абсолютно любой стиль интерьера допускает использование комнатных растений для оформления. Присутствие зеленых растений добавит шарм и неповторимость помещению, обогатит его кислородом и создаст неповторимый микроклимат.
Если использование такого элемента декора кажется, вам слишком сложным можно обойтись аквариумом со светодиодной подсветкой и несколькими вьющимися растениями в кашпо.
Раздвижные двери и ширмы для разграничения зон
Раздвижная дверная система хорошо себя зарекомендовала в небольших квартирах. Задвинув дверь, легко превратить целостное пространство в два отдельных помещения. Очень удобен такой вариант в студиях, при приготовлении пищи кухня легко изолировать от остальной части комнаты.
Из предоставленных образцов раздвижных дверей в торговых центрах всегда можно выбрать наиболее подходящий для дизайна квартиры 40 квадратов по конструкции и расцветке.
В тех случаях, когда нет желания устанавливать стационарную раздвижную дверь можно использовать ширму, которую можно убрать при ненадобности.
Многоярусная мебель для экономии пространства
Если позволяет высота потолков, неплохо использовать мебельные конструкции, состоящие из нескольких ярусов. Особенно такие варианты нравятся детям. Расположив кроватки в верхней части комнаты можно значительно сэкономить пространство.
Актуально выглядят и подиумы.
В ночное время его можно использовать в качестве спального места, а днём это будет место для игр.
Кровать, размещенная в нише из встроенных шкафов прекрасный вариант для уединённого отдыха, при необходимости её можно задрапировать занавеской.
Шведские мебельные компании считаются лидерами на рынке по продаже многоуровневой мебели, и каждый год представляют новую коллекцию разработок. Внимательно следя за новинками можно выбрать подходящий вариант. В квартире площадью 40 квадратов есть место для полёта фантазии при разработке дизайна, нужно всего лишь попробовать.
Лучшие фото оформления дизайна квартиры 40 кв. м.
фото интерьеров + 5 проектов
Очень часто молодая семья из двух человек не может позволить себе сразу шикарные апартаменты или двух-, трехкомнатную квартиру.
Приходится довольствоваться малой площадью (хотя для небольших городов такие квартиры уже шикарны) однокомнатных квартир, взятых в ипотеку. Чаще всего застройщики предлагают однушки со стандартной планировкой и площадью 40-42 квадратных метра. На планах это отдельная кухня и комната, но чтобы было комфортно жить, чаще всего владельцы задумываются над перепланировкой, деля кухню на две зоны — приготовления, принятий пищи и приема гостей. А спальня так и остается местом для отдыха.
Но существует немало разнообразных вариантов переноса стен и коммуникаций, расстановки мебели и использования всего пространства по максимуму. Мы подобрали для вас пять шикарных дизайнерских проектов перепланировки стандартных однушек площадью 40, 41 и 42 квадратных метра. Приятного просмотра!
Однокомнатная квартира 42 метра с кабинетом на лоджии
Целью данного проекта было создать лаконичное и функциональное пространство с рабочей зоной. Из цветов стали предпочтительны нейтральные с контрастными вкраплениями, благодаря которым создали броский свежий образ современного жилья.
При разработке дизайна отказались от лишних декоративных элементов, что помогло создать ощущение бОльшего пространства. В то же время должна быть грамотная организация систем хранения во всей квартире.
Общая площадь 42 квадратных метра.
- 1 — Гостиная 9 м2
- 2 — Лоджия-кабинет 3 м2
- 3 — Кухня 7 м2
- 4 — Спальня 13 м2
- 5 — Ванная комната 4 м2
- 6 — Холл 5 м2
Дизайнер: Ольга Розина, фото: Борис Бочкарев.
Квартира 40 метров в оливковых и гранатовых оттенках
Основными цветами для интерьера стали: гранатовый, фисташковый и оливковый. Открытая планировка (пожелания заказчицы) превратилась в грамотно спланированное помещение с четко выделенными зонами. Четко определены границы лишь санузла и гардеробной с высокими системами хранения до потолка.
Дизайнер: Veronika Timashok
Однокомнатная квартира 40 квадратных метров со стеклянной спальней
В результате перепланировки однокомнатной квартиры кухня оказалась объединенной с гостиной зоной.
Такое решение было продиктовано пожеланиями заказчицы — молодой девушки, которая любит устраивать дружеские посиделки, а для этого необходимо открытое пространство. Чтобы ограничить приватную зону для отдыха, спальное место разместили за стеклянной перегородкой с дополнительно закрывающейся шторой. Это позволяет сохранить в спальне естественное освещение, а при необходимости скрыться с глаз. Дополнительно в спальню была проведена принудительная вентиляция.
Дизайнер: Евгений Жданов, архитектор: Павел Годяев.
Реализованный проект однушки 40 метров в светлых тонах
Дизайн однокомнатной квартиры площадью 40 квадратных метров рассчитан на двух человек. Владельцы останавливаются в данном помещении во время деловых поездок, не проживая в ней постоянно. Свободная планировка и отсутствие межкомнатных перегородок позволило воплотить в жизнь все задумки дизайнера, чтобы получить элегантный интерьер в светлых оттенках. В итоге кухонная зона оказалась объединенной с гостиной, выделены лишь спальня и санузел.
Небольшое пространство рассчитано на молодую семейную пару без детей, о чем говорит отсутствие декора и барная стойка вместо обычного кухонного стола.
Архитектор и автор: Юлия Черняева, фото: Александр Камачкин
Проект однокомнатной квартиры 40 метров в старом доме
Проект небольшой однокомнатной квартиры в историческом центре Москвы для молодой девушки.
Несомненным достоинством в квартире являются высокие потолки, а маленький французский балкончик — ее изюминкой. Благодаря выполненной перепланировке удалось организовать на такой небольшой площади объединенное пространство кухни-гостиной и спальни, разделенные между собой стеклянной раздвижной перегородкой.
Помимо этого немного уменьшив санузел, была организована гардеробная с постирочной.
Общая площадь квартиры после перепланировки составила 39,8 кв.м. м здании
Дизайнер: Анна Бовтко
Проект однокомнатной квартиры 42 метра с будуаром
Пожеланием заказчицы было обустроить на 40 квадратных метрах спальную и рабочую зоны, гостиную, кухню и будуар.
Основным цветом стал теплый бежевый, а акцентным — васильковый.
Дизайнер: Татьяна Еремина
Дизайн однокомнатной квартиры 40 кв. м
Однокомнатная квартира – это не только ценовая доступность, а еще и поле для экспериментов в сфере планировки и дизайна интерьера. Сорок метров общей площади только на первый взгляд наводят на мысли о раскладушке на кухне и ежевечерней борьбе за место на единственном в квартире диване. Однокомнатная квартира – не приговор, а отличная возможность проявить разумную фантазию на всей площади «нерезиновых» квадратных метров.
Особенности
Начнем с того, что практически все однокомнатные квартиры, даже те, что располагаются в домах постройки середины прошлого века, оснащены балконами или вместительными лоджиями. Объединение балкона с комнатой или кухней давно уже стало обычной практикой при внесении изменений в первоначальную планировку квартиры.
Тем более наличие дополнительной площади в виде нескольких (иногда до десяти) квадратных метров – весьма важный аргумент при выборе однокомнатной квартиры.
Балкон в XXI веке не просто место хранения сезонных вещей и старого хлама, но, в первую очередь, дополнительное пространство для оригинальных дизайнерских и даже архитектурных решений.
Другая особенность однокомнатных квартир общей площадью сорок метров – достаточно большая комната. Ведь она единственная в квартирах такого типа, а это значит, что спальня, столовая, игровая комната и рабочий кабинет должны каким-то образом уместиться в одной комнате и это реально. Нужно понимать, что в малогабаритных квартирах ключевую роль играет не площадь, а объем. В единственной комнате вполне реально разместить все необходимое для комфортного проживания семьи из трех и даже четырех человек, не говоря уже о паре – нужно только внимательно относиться к мелочам и научиться выигрывать пространство там, где это кажется маловероятным.
Проект удобной и вместительной однокомнатной квартиры – непростая задача, к которой следует подходить основательно, используя советы профессионалов. Ниже будут перечислены самые важные аспекты, которые нужно учитывать при реализации проекта оформления однокомнатной квартиры.
Несмотря на то что однокомнатные квартиры малой площади достаточно однотипны, каждую из них можно сделать своего рода уникальным проектом для комфортного проживания.
Зонирование
Существует несколько различных способов разделить квартиру площадью 40 кв.
м на несколько функциональных зон. Выбор зависит от того, сколько человек будет проживать в квартире: будет это семья с детьми или пара с кошкой, собакой и огромным аквариумом на сто литров.
Итак, основные варианты зонирования:
- Санузел и кухню, как правило, изолированные от жилой комнаты, можно комбинировать с остальной квартирой таким образом, чтобы увеличить размеры полезной площади и уменьшить функциональную нагрузку на каждую из зон.
- Если площадь кухни позволяет разместить в ней, помимо стандартных предметов мебели, ещё и обеденный стол, значит, имеет смысл задуматься об отделении части кухонного пространства под столовую. Это может быть самый обычный стол, способный вместить столько человек, сколько обычно собирается вместе плюс пару-тройку гостей.
Чаще всего стена между кухней и комнатой заменяется декоративной перегородкой (полупрозрачной или глухой), которая позволяет значительно увеличить полезное пространство кухни и создать комфортную зону приема пищи, которая также может выполнять функции гостиной.
- Собственно жилая (она же единственная в нашем случае) комната выполняет несколько функций: спальня, игровая зона (если в квартире проживают дети), зона приема пищи (совмещенная с кухней), а также рабочая зона с удобным столиком для ноутбука, эргономичным креслом и стеллажом для книг.
- Общая площадь 40 кв. м, как правило, не включает в себя балкон или лоджию, которые все чаще объединяют с жилой комнатой или кухней.
В этом случае дополнительную площадь чаще всего рекомендуется отводить под рабочее место или гостиную зону; последнее особенно актуально, если балкон или лоджия объединены с кухней.
- Санузел в малогабаритных квартирах бывает двух типов: раздельный и совмещенный. Поскольку речь в нашем случае идет о сорока метрах общей площади, нелишним будет задуматься о том, стоит ли совмещать изначально изолированные туалетную и ванную комнаты. Объединение этих комнат в единый санузел позволит, с одной стороны, получить дополнительное полезное пространство, а с другой – более грамотно расположить мебель и предметы интерьера в пределах зоны санузла.
- Не забываем о прихожей. Даже если это маленький «пятачок» перед дверью, не стоит пренебрегать его скромными размерами. Прихожую можно органично вписать в пространство жилой комнаты, продлив тем самым зону размещения шкафов-купе или стенных стеллажей.
Возможен также вариант объединения прихожей с кухней: в этом случае у нас появляется маленькая гостиная, логично связанная с остальным пространством квартиры.
Отделка
Скромная площадь вовсе не означает простоту и невзрачность отделки. С другой стороны, нагромождение материалов и буйство цветов вряд ли будут гармонично сочетаться с основной функцией нашей квартиры: максимум пользы при минимуме пространства. Ремонт должен оправдывать ожидания.
Цветовое оформление отдельных зон квартиры имеет немаловажное значение: правильно подобранные сочетания различных оттенков цветов позволяют визуально увеличивать жилое пространство, что создает дополнительное ощущение комфорта и значительно улучшает психологическое состояние проживающих в квартире.
А в остальном ваша фантазия ограничивается только вашими финансовыми возможностями. Вот три основных направления отделки квартиры.
Полы
Ламинат или дерево – вопрос цены и предпочтений, при условии, что покрыть нужно всего лишь 40 м2. Если вы предпочитаете обходиться без напольных ковров и других элементов декора, цвет напольного покрытия и его материал имеют не только практическое, но и стилистическое значение. Оптимальный вариант – цвет пола и стиль исполнения сочетаются с общим стилем, в котором выполнена отделка всей квартиры.
Однако возможен вариант, при котором напольное покрытие разительно отличается от остальных элементов интерьера.
В любом случае не следует забывать, что главные качества напольного покрытия – это прочность и долговечность.
Стены
Одним из наиболее популярных (и доступных) материалов для стен и перегородок является гипсокартон. При этом нужно понимать, что наличие двух или даже трех новых глухих стен в однокомнатной квартире вместо одной старой, не прибавит ни пространства, ни уюта, зато создаст ощущение замкнутости и затруднит доступ в смежные зоны. В современных городских квартирах стены – большая условность, все больше дизайнеров все чаще склоняются к тому, что вместо стен, лучше использовать перегородки.
Это могут быть полупрозрачные и вовсе непрозрачные конструкции различной высоты (совсем необязательно от пола до потолка), которые легко поддаются обработке краской и оклейке обоями, к тому же такие перегородки легко переместить в том случае, если вам захотелось сделать перестановку в квартире.
Красить или клеить обои? Однозначного ответа на этот вопрос нет, и это правильно, поскольку именно отделка квартиры позволяет максимально раскрыть свою творческую фантазию. В пользу окраски можно сказать однозначно: это проще и дешевле. Простой дизайн вполне сочетается с хорошим вкусом. К тому же, если вам надоел цвет, его легко можно переменить, просто перекрасив стены.
Если же вы принципиально выступаете за обои, следует обратить внимание на соответствие цвета и стиля зонам квартиры. Например, одинаковые или сочетающиеся обои в прихожей и жилой комнате позволяют визуально увеличить объем жилого пространства.
Потолки
В современных квартирах всё чаще предлагают навесные потолки, но в нашем случае этот вариант, скорее всего, не подойдёт.
В значительно ограниченном пространстве, как уже говорилось выше, имеет значение объём, а не площадь. Поэтому потолок лучше оставить на первоначальной высоте, при этом его цвет и материал покрытия может быть практически каким угодно. 1-комнатная квартира изначально представляет собой практически единое пространство, логично будет выполнить потолки в единой цветовой гамме.
Мебель
Поскольку мы рассматриваем вариант относительно небольшой, скорее, даже малогабаритной квартиры, мебель, которая будет в ней находиться, должна обладать двумя качествами: функциональность и компактные размеры. Не следует пренебрегать вторым ярусом для размещения спальных мест, особенно если высота потолков составляет хотя бы 2.8 метра. Помимо спальных мест, второй ярус рекомендуется использовать также для хранения сезонной одежды и других необходимых вещей.
Мебель нужно выбирать максимально утилитарную: симпатичные пуфики и журнальные столики имеет смысл заменить стеллажами и напольными подушками; последние легко убирать на ночь и во время уборки.
Квартира-студия предполагает наличие элементов трансформирующейся мебели: диван, который складывается и раскладывается в одно-два движения, совмещенный со стеллажом или рабочим местом; кровать для двоих на втором ярусе, а на первом – многофункциональное рабочее место с выдвижным ящиком для хранения постельного белья и комбинированным шкафом для одежды.
Описания примеров хватило бы на отдельную книгу, важно понимать, что мебель в малогабаритной однокомнатной квартире должна соответствовать всем требованиям подобного проживания: места мало, а функций нужно много. Безусловно, выручают в таких случаях всевозможные шкафы-купе, которые можно размещать как вдоль стен, так и по углам, используя всю площадь квартиры, от прихожей до балкона (лоджии).
Если высота стен позволяет использовать верхнее пространство под потолком, обязательно заведите себе антресоли.
Это не склад ненужных вещей, которые жалко выкинуть, а дополнительное полезное пространство для шкафов, ниш и даже спальных мест. И тогда ваша студия станет действительно комфортной, а все ее элементы современными и многофункциональными.
Что в квартире важнее всего для мужчины? Правильно, возможность хранить рабочие инструменты, спортивные снаряды и прочий полезный скарб, который вызывает раздражение у женщин. Для хранения подобных вещей (некоторые из них вполне могут выполнять функцию элементов декора) в малогабаритной квартире отлично подойдут ниши и встроенные шкафы, которые лучше размещать в коридоре или в зонах, напрямую связанных с балконом/лоджией.
Декор
Малая площадь вовсе не означает, что идеи по созданию оригинального декора будут ограничиваться покраской стен и побелкой потолков.
Разумный подход к оформлению жилого пространства всегда приносит благоприятные плоды, независимо от того, сколько в вашем распоряжении квадратных метров.
Можно выдерживать единый стиль на всей площади квартиры, когда каждая из зон плавно перетекает в соседнюю, образуя единый, логически завершенный каскад предметов мебели и декора. Можно, наоборот, выделять каждую из зон таким образом, чтобы подчеркнуть достоинства и функции каждой из них. Однозначного решения в отношении оформления вашей квартиры нет.
Однако некоторые общие рекомендации все же уместны. Не следует забывать, что ваше небольшое пространство предназначено, в первую очередь, для проживания, а не для музейных выставок. Соответственно, декор должен быть таким, какой больше всего подходит под ваши требования, при этом жилое пространство не нужно загромождать предметами, которые будут нести исключительно украшающую функцию.
Минимализм не является панацеей, но и обилие цветов и дизайнерских идей может создать некомфортные ощущения при проживании в квартире.
Ниже представлено несколько примеров оригинальных решений при оформлении однокомнатной квартиры небольшого метража.
Красивые примеры интерьера
Современный подход к оформлению квартир наглядно представлен в примерах, которые наверняка понравятся вам и помогут принять свое индивидуальное решение.
Отличное сочетание преобладающих светлых тонов со шторами и диваном темного цвета.
Следует отметить, что в данном примере лоджия объединена с комнатой и выполняет функцию рабочей зоны.
Здесь мы видим пример отделения спальной зоны полупрозрачной перегородкой с дверьми типа купе, а также оригинальное решение в виде соединения кухни с комнатой, при этом спальная часть отгорожена от кухни капитальной стеной.
Вовсе не обязательно размещать спальные места у окна – это можно сделать в противоположном конце комнаты, а в качестве перегородки использовать стильный полог. Да и зебры на стене хороши.
А в этом примере представлен уже более строгий стиль, тем не менее ограниченное пространство не мешает целостному восприятию красочного интерьера.
Пример дизайна однокомнатной квартиры площадью 40 кв. м. смотрите в следующем видео.
Дизайн однокомнатной квартиры 40 кв м — лучшие фото и проекты на 2019
При грамотном зонировании однокомнатной квартиры — места и пространства хватит на все необходимые зоны и предметы мебели
Недвижимость стоит дорого, каждый квадратный метр на счету. Именно поэтому многие покупают квартиры-студии, в которых все в одном месте и на виду. Если же интерьер однокомнатной квартиры необходимо обустроить на площади порядка 36-40 кв.
м, то разогнаться в мебельных изысках не так уж и просто. Основная задача в этом случае – сделать функциональный дизайн, а если он будет еще и стильным, это станет отличным бонусом!
Выдержанный интерьер гостиной с геометрическими и цветовыми акцентами
Оптимальное решение для квартиры, площадью 40 кв. метров — это опен-спейс и объединенные пространства
При выборе светлой цветовой гаммы не забывайте о мелких акцентах и деталях, именно они в итоге «делают лицо» вашей квартиры
Блок: 1/17 | Кол-во символов: 839
Источник: http://happymodern.ru/dizajn-odnokomnatnoj-kvartiry-40-kv-m/
1. Красивый дизайн квартиры студии 40 кв м — фото и план жилища
Владелица этих апартаментов пожелала, чтобы дизайн её квартиры был чистым, простым, элегантным и вневременным. Как вы считаете: удалось ли дизайнеру достичь этого?
Чтобы интерьер выглядел просторнее, все отдельные зоны этой квартиры были непосредственно связаны друг с другом. Кухня объединена с гостиной, в ванную ведет прозрачная дверь, а спальня отгорожена от гостиной полуоткрытой перегородкой в виде вертикальных жалюзи.
И вот вместо нескольких маленьких комнатушек получилось одно, но очень свободное и стильное помещение!
Среди других важных элементов дизайна этой квартиры 40 кв м стоит отметить светлую цветовую палитру и отсутствие массивных подвесных светильников, которые «воруют» воздух у интерьера. Обратите внимание, что встроенные точечные светильники по периметру потолка гостиной как бы отделяют эту зону от остальных областей квартиры.
Блок: 2/16 | Кол-во символов: 923
Источник: https://dekorin.me/dizajn-odnokomnatnoj-kvartiry-40-kv-m-foto/
Начало работ по обустройству однушки
Начало ремонта квартиры 40 кв. м. стоит начинать с разработки проекта. Если возможности обратиться к профессиональный дизайнерам-проектировщикам нет, то простых набросков карандашом на бумажном полотне будет достаточно для того, чтобы произвести примерные расчеты и распланировать полезное пространство удобно.
При составлении проекта обращать внимание стоит на следующие моменты:
- бюджет, в который уже включены денежные средства на непредвиденные траты;
- конструктивные особенности помещения, включая все ниши, выступы, перекладины и т.д.;
- количество домочадцев, которые проживают на площади постоянно, с учетом их нужд и желаний;
- выбранная стилистическая концепция;
- месторасположение главных мебельных групп и аксессуаров.
Блок: 2/6 | Кол-во символов: 764
Источник: https://strojka-gid.ru/kvartira-40-kv-m/
2. Украинский дизайн квартиры 40 кв м — фото и 3D проект
Следующая стильная квартира площадью 40 кв м находится во Львове и была разработана дизайнерами Романом Вербищуком, Юлианной Вербой и Любовью Лазорив. Как видно на фото, кухня здесь намного больше и удобней, чем в предыдущем варианте. А диван и кровать, несмотря на то, что стоят почти впритык, разделяются прозрачной стеклянной перегородкой.
В результате дизайн квартиры выглядит открытым и воздушным, а стильная плитка на кухне и в ванной приносит в нее интересную изюминку.
Блок: 3/16 | Кол-во символов: 537
Источник: https://dekorin.me/dizajn-odnokomnatnoj-kvartiry-40-kv-m-foto/
Оригинальные идеи и уловки для интерьера однокомнатки
При создании дизайна, подборе стиля можно использовать оригинальные уловки, которые пойдут на пользу интерьеру.
Блок: 3/17 | Кол-во символов: 166
Источник: http://happymodern.ru/dizajn-odnokomnatnoj-kvartiry-40-kv-m/
Четкое зонирование квартиры
В этом случае удобнее всего использовать мебель. С ее помощью можно обустроить зоны для встречи гостей, работы, сна. В этом случае можно поставить в квартире:
- Стеллажи, но не ширмы, которые занимают много площади.
- Секретеры, а не письменные столы.
- Комоды. Не стоит думать, что они маловместительны: в некоторых из них одежды вмещается больше, чем в стандартный (средний) шкаф.
Важно! За счет правильной планировки можно визуально увеличить даже относительно небольшое пространство.
Зонирование можно легко осуществить цветами и текстурами
Стильная глянцевая кухня с геометрическим фартуком
Если ваша кухня не располагает большими площадями — попробуйте отказаться от навесных шкафчиков на стене в пользу открытых полок. Габаритные кастрюли и прочие аксессуары вполне влезут в нижние кухонные тумбы
Блок: 4/17 | Кол-во символов: 828
Источник: http://happymodern.ru/dizajn-odnokomnatnoj-kvartiry-40-kv-m/
Эксклюзивные решения дизайна малогабаритных квартир
Квартира вне зависимости от ее размеров должна быть не только комфортной, но и красивой. Дизайнеры предлагают несколько очень оригинальных решений, вы их можете самостоятельно немного совершенствовать и вносить свои изменения.
Фитостена
Что такое зонирование пространства знают все, многие имеют представление о нескольких возможных решениях. Но мало кто слышал о так называемой фитостене. Это живое зонирование, по количеству вариантов решения не имеет себе равных.
Фитостена — оригинальное решение для жилых помещений
Зонирование делается при помощи цветов, они могут быть вьющимися и размещаться на полу. К потолку прибиваются специальные элементы, по которым по мере роста поднимается стебель. Есть другой вариант – растения небольшие и ставятся на высокие полки. Стеллажи могут быть стационарными или передвижными, большими или маленькими. Конкретный выбор зависит от характеристик используемых растений.
Фитостена – отличное решение не только украшающее интерьер помещения, но и улучшающее параметры микроклимата. В таких квартирах влажность воздуха всегда будет в пределах рекомендованных значений, повышается процентное содержание кислорода, уменьшается пыльность и т. д. Кроме того, многие цветы имеют выраженное терапевтическое воздействие на психику человека, успокаивают нервную систему, улучшают самочувствие. Как дополнение можно использовать плоские высокие аквариумы с различными подсветками.
Для создания фитостены важно правильно подобрать растения
Современный стильный дизайн
Такие решения привлекают молодых людей, не требующих вычурных форм и не соблюдающих общепринятые традиции. С помещения удаляются перегородки, отдельно располагаются только туалетная и ванная комнаты. Все остальные помещения (коридор, кухня, гардеробная, зала) становятся одним большим помещением.
Зонирование помещения выполнено с помощью мебели
Зонирование делается самым простым и очень мобильным методом – кровать отделяется от остальной площади шторой. Кстати, она необязательно должна быть плотной непрозрачной, все зависит от предпочтения и положения хозяина квартиры. Используется так называемый принцип open space (открытый космос). Как и полагает быть космосу, в квартире преобладают темные оттенки. Решение необычное, тем более что абсолютное большинство дизайнеров не рекомендует использовать в малогабаритных квартирах темные цвета. Но в данном случае отклонение от аксиомы идет на пользу, вы получаете креативное жилье с уютной располагающей к отдыху атмосферой.
Пример оформления интерьера open space
Цены на угловые диваны
Угловой диван
Такое сочетание цветов придает интерьеру стильный и современный вид
Брутальный лофт
Этот пример еще раз подтверждает, что нарушать советы профессионалов можно, получаются очень оригинальные стили оформления помещений. Лофт – чердак, создать стиль лофт – сделать жилье, напоминающим чердак. Такие помещения пользуются популярностью среди представителей богемы, они желают иметь у себя самые необычные решения. Бюджет может быть ограниченным или вполне существенным, элементы кирпичной кладки имитируются во время отделки поверхностей или изготавливаются из настоящего кирпича.
Ровные штукатурки или иные покрытия удаляются, работать следует нарочито неаккуратно, поверхности должны иметь большие неровности, следы работы перфоратора и т. д. В обязательном порядке нужно оголять проводку, бетонное или деревянное потолочное перекрытие. Мебель винтажная, желательно чтобы на ней были заметны следы неумелого ремонта.
Интерьер в стиле лофт хоть и кажется простым, требует грамотного сочетания предметов обстановки
Теплые оттенки делают помещение уютнее
Интерьер оформлен в стиле лофт, кухня и гостиная совмещены
По лаконичности и непритязательности лофт напоминает минималистический стиль, популярность которого существенно увеличилась в последние годы. Правда, при оформлении квартиры в стиле минимализм, в отделке поверхностей не допускается небрежности, все должно быть максимально аккуратно и качественно.
5 основ минимализма в интерьере
Уютное гнездышко
Как можно понять из названия, в таких квартирах предпочитают проживать девушки с утонченными натурами и молодые интеллигентные семьи. Если два вышеописанных варианта отдавали предпочтение темным тонам, то в этом случае все наоборот. Белого цвета очень много, некоторым может показаться, что это слишком.
Помещение имеет оригинальное зонирование, создающее отдельные участки кухни, столовой, залы, кабинета и спальной. Конечно, это не полноценные помещения, а только их имитация, но очень удачная. Проект совмещает в себе несколько решений, к примеру, активно используется пьедестал для спальни. Для перегородок применяется высокая функциональная мебель, стол может заменяться барной стойкой. Мобильные перегородки изменяют планировку в зависимости от количества гостей и времени суток.
Светлые тона в отделке и простая, но удобная мебель придают помещению очень уютный вид
Однокомнатная квартира 40 кв. метров для семьи из трех человек
Такие работы требуют очень большого внимания. Есть заблуждение, что в однокомнатной квартире в принципе не могут себя комфортно чувствовать взрослые с детьми-школьниками. У них совершенно различные интересы и потребности в личных пространствах, но современные дизайнеры сумели разрушить этот миф. В углу помещения сделан относительно высокий подиум, на нем размещается спальная и рабочее место ребенка. Зона отгорожена высокими шкафами, в ночное время дополнительно закрывается плотными шторами или глухими раздвижными дверями. Для взрослых предусмотрен широкий удобный диван, днем он выполняет свои функции в зале, а ночью трансформируется в кровать.
В таком интерьере комфортно будет и взрослым, и ребенку
Цены на кровати трансформеры
Кровать трансформер
Видео — Дизайн однокомнатной квартиры 40 кв. м фото
Блок: 4/5 | Кол-во символов: 5801
Источник: https://remont-book.com/dizajn-odnokomnatnoj-kvartiry-40-kv-m/
Стилистика небольших помещений
Простой принцип оформления дизайна квартиры 40 кв. м. заключается в использовании светлой колористики. Именно, исходя из этого условия, и подбираются стили помещения, среди которых самыми подходящими являются:
Классицизм с его правильными формами и симметрией, здесь четко соблюдаются пропорции. Для отделки стеновых поверхностей подойдут нежные полотна обоев, на полу лучше выстелить паркет или ламинат.
Минималистические направления хороши своими прямыми углами и простейшими формами. Эти стилистики исключают вычурность, палитра тонов светлая, с включением ярких деталей.
Лофт стилизация с промышленным характером как нельзя кстати придется для небольшой жилплощади.
Блок: 4/6 | Кол-во символов: 707
Источник: https://strojka-gid.ru/kvartira-40-kv-m/
Фото квартиры 40 кв. м
Также рекомендуем посетить:
Блок: 6/6 | Кол-во символов: 94
Источник: https://strojka-gid.ru/kvartira-40-kv-m/
Идеи для экономии пространства в рамках 40 кв. м
В современном интерьере можно смело отказаться от таких пережитков СССР, как стенка, диван (если он не спальное место), кресла. Та мебель, которую сейчас можно найти, очень удобна и практична, а главное – компактна. Именно подобную следует выбирать для обустройства такой многофункциональной площади. Яркие примеры:
- Если вся семья собирается перед телевизором, усевшись на диване, кресла ни к чему.
- Посадить гостей можно прямо на полу, подстелив удобные и мягкие подушки. Они компактны, к тому же их можно убрать в шкаф или на балкон.
- Если работаете с ноутбуком за кухонным столом, то отдельное рабочее место обустраивать не имеет смысла.
Просто нужно реально обдумать, какие привычки у семьи, и основываясь на этом, сделать выбор в пользу той или иной мебели.
Белый — всегда останется классикой для малогабаритных квартир и студий
Блок: 5/17 | Кол-во символов: 882
Источник: http://happymodern.ru/dizajn-odnokomnatnoj-kvartiry-40-kv-m/
5. Скандинавский дизайн однокомнатной квартиры 35 кв м
Этот дизайн однокомнатной квартиры был включен в наш список лучших проектов во многом благодаря тому, что здесь установлена кровать-чердак. Именно этот предмет интерьера в сочетании с лаконичным скандинавским стилем, заставляет это жилище выглядеть просторным, стильным и очень уютным. Ну и, конечно же, окно в стене между кухней и гостиной придает ему еще больше очарования и свободы.
Блок: 6/16 | Кол-во символов: 443
Источник: https://dekorin.me/dizajn-odnokomnatnoj-kvartiry-40-kv-m-foto/
Трансформеры для однокомнатной квартиры: диван + кровать
Нет, мы не советуем использовать раскладной диван вместо кровати, хотя это тоже неплохое решение. Лучше оригинально поставить эти два предмета – спинкой друг к другу. В этом случае удастся создать более или менее обособленный участок – спальную зону и место для досуга.
Кровать-трансформер может сэкономить много места
Зонирование с помощью перегородки
Блок: 6/17 | Кол-во символов: 410
Источник: http://happymodern.ru/dizajn-odnokomnatnoj-kvartiry-40-kv-m/
Выбор цвета для стен квартиры
Даже однокомнатную квартиру хочется наполнить яркими элементами, и тут переусердствовать нельзя, ведь это приведет к тому, что помещение еще больше визуально ужмется. Но выход есть – делать яркие акценты в мелких элементах декора, текстиле или малогабаритной мебели.
В качестве цветового акцента отлично подойдут кухонные фасады
Стильный современный интерьер с ярким стулом
Блок: 7/17 | Кол-во символов: 404
Источник: http://happymodern.ru/dizajn-odnokomnatnoj-kvartiry-40-kv-m/
7. Дизайн квартиры студии 45 кв м — фото и план проект
Эта потрясающе стильная квартира площадью 45 кв м расположена в Москве и была разработана дизайн-студией INT2. Как и положено студии, она состоит из всего одной комнаты, которая содержит в себе отдельные зоны гостиной, спальни, кухни и ванной комнаты. Некоторые из них разделены небольшими участками стен, другие — шторами. Дизайн квартиры оформлен в прекрасном сочетании пастельных тонов, а также скандинавского и современного стилей.
Блок: 8/16 | Кол-во символов: 493
Источник: https://dekorin.me/dizajn-odnokomnatnoj-kvartiry-40-kv-m-foto/
Столовая в однокомнатной квартире — реальность
Часто пространство на кухне столь ограниченное, что приходится выдумывать, где разместить семью для приема пищи. Вполне удобный вариант – это организация столовой зоны в комнате. Стол, который там следует поставить, будет одновременно и обеденным, и рабочим. Так можно избежать захламления квартиры.
Оптимальное решение! Хотя помещение небольшое, актуально использовать именно круглый стол – он будет выглядеть аккуратнее.
Барная стойка отделяет кухню от гостиной
Необычная стенка украшает интерьер
Блок: 8/17 | Кол-во символов: 551
Источник: http://happymodern.ru/dizajn-odnokomnatnoj-kvartiry-40-kv-m/
Современный дизайн однокомнатной квартиры 40 кв. м: с чего начать?
Главная проблема – это рациональная организация пространства. Тут уж хочешь не хочешь, но выделить несколько ключевых зон придется:
- Спальня.
- Рабочее пространство.
- Кухня.
- Место для приема гостей.
- Если есть ребенок, нужно обустроить для него уголок.
Подоконник вполне способен заменить обеденный стол для двоих
с
Белая кухня с комнатными растениями
Стоит приготовиться, что легко не будет, но вместить все это, еще и выдержав определенный стиль, реально.
Совет! Для того чтобы удалось осуществить функциональное зонирование однокомнатной квартиры, следует четко выделить две зоны: гостевую и приватную.
Если вы владелец однокомнатной квартиры с небольшой площадью — обратите внимание на скандинавский стиль в интерьере
Ковер или подиум отлично разграничит зоны в небольшой квартире при наличии совмещенных комнат
Блок: 2/17 | Кол-во символов: 880
Источник: http://happymodern.ru/dizajn-odnokomnatnoj-kvartiry-40-kv-m/
8. Необычная планировка и дизайн 1 комнатной квартиры 40 кв м
Эта маленькая однокомнатная квартира выделяется не только необычной планировкой, но и красивой комбинацией японского и скандинавского минимализма. Светлые оттенки древесины и нейтральная цветовая палитра здесь выгодно подчеркиваются синими и желтыми деталями, в том числе диванными подушками, мягкими сидениями стульев и обшивкой стены в спальной зоне. Как вам идея?
Блок: 9/16 | Кол-во символов: 431
Источник: https://dekorin.me/dizajn-odnokomnatnoj-kvartiry-40-kv-m-foto/
Функциональное место над кроватью
Над изголовьем кровати всегда есть свободная стена, и ее редко используют для чего-то большего, чем картина, а зря. Этот огромный простор можно приспособить для полок, хотя многих напрягает, если над головой что-то висит. Можно проверить свою реакцию, например, повесив для начала небольшую легкую полочку. Когда привыкнете, можно монтировать что-то увесистое, позаботившись о качественных крепежах.
Блок: 9/17 | Кол-во символов: 434
Источник: http://happymodern.ru/dizajn-odnokomnatnoj-kvartiry-40-kv-m/
9. Дизайн однокомнатной квартиры 40 кв м для матери и дочки
Этот дизайн однокомнатной квартиры был создан польской фирмой Pressenter Design специально для матери с 6-летней дочерью. Проект жилища призван соответствовать растущим потребностям ребенка, для чего здесь было обустроено просторное место для учёбы в комплекте с подвесными шкафчиками для книг и прочих принадлежностей. Низкая подставка под телевизор и такой же высоты журнальный столик в сочетании с общим минимализмом дизайна делают эту квартиру очень легкой и свежей, а темное дерево на фоне гладких белых поверхностей создает просто шикарный эффект. Мы полагаем, что возмножно такой дизайн однокомнатной квартиры подойдёт и для супружеской пары.
Блок: 10/16 | Кол-во символов: 719
Источник: https://dekorin.me/dizajn-odnokomnatnoj-kvartiry-40-kv-m-foto/
10. Дизайн двухкомнатной квартиры 40 кв м: оформление гостиной и детской
Наверное, многих читателей этой статьи волнует вопрос: как обустроить отдельную детскую комнату в дизайне двухкомнатной квартиры 40 кв м? В качестве ответа мы предлагаем вам фото двух квартир, где гостиная представляет собой одновременно и спальню родителей, а отдельная детская легко вмещает 2-х детей. Чтобы кое-кто не говорил, что живя в 40 кв. метрах нельзя себе позволить второго ребенка)))
Первая из этих квартир отличается очень элегантной гостиной, объединенной с уютной кухней, и яркой детской комнатой с двухэтажной кроватью в морском стиле, который так любят многие малыши.
Второй дизайн двухкомнатной квартиры 40 кв м выполнен в стиле минимализм и отличается многофункциональной мебелью при том, что в детской комнате стоят две отдельные односпальные кровати.
Блок: 11/16 | Кол-во символов: 854
Источник: https://dekorin.me/dizajn-odnokomnatnoj-kvartiry-40-kv-m-foto/
Неочевидные участки для систем хранения в доме
Даже в компактной однокомнатной квартире можно найти не всегда очевидные места для полок и комодов. Среди них:
- Стены над диваном, столом – здесь можно повесить полки, стеллажи. При этом важно, чтобы они были удобными и не мешали нормальному перемещению по квартире.
- Углы – в них отменно размещаются угловые полки, которые могут быть более чем практичным решением.
- Коридор – в нем прямо под потолком можно расположить полки-антресоли. На них следует размещать вещи, которые используются редко, или сезонные.
- Под широким подоконником удачно размещается невысокий комод.
Система хранения, спрятанная в подиуме
Блок: 11/17 | Кол-во символов: 654
Источник: http://happymodern.ru/dizajn-odnokomnatnoj-kvartiry-40-kv-m/
11. Современный дизайн квартиры 40 кв м с элементами luxury
Просто удивительно, но эта двухкомнатная квартира с роскошной спальней имеет площадь всего 37,5 квадратных метров! Маленькая прихожая с бархатной банкеткой в нише переходит в довольно просторную кухню, а основная комната разделяется перегородкой на гостиную с рабочим местом и очень красивую спальню. Как и в большинстве маленьких квартир, белый цвет был взят за основу и разбавлен яркими акцентами желтого (стена в прихожей, кухня, стулья в гостиной) и бирюзового (спальня) тонов. В целом эта маленькая квартира в Санкт-Петербурге выглядит модной и очень удобной. Представленный на фото дизайн двухкомнатной квартиры — образец максимально выгодного использования пространства!
Блок: 12/16 | Кол-во символов: 739
Источник: https://dekorin.me/dizajn-odnokomnatnoj-kvartiry-40-kv-m-foto/
Выбор мебели для малогабаритной квартиры (35, 36, 38 и 40 кв. м)
Первое, что нужно учесть: стандартную мебель поставить в это многофункциональное помещение не получится, скорее всего, придется заказывать ее индивидуально. Но есть несколько универсальных вариантов, которые оптимально подходят именно для однушек.
Блок: 12/17 | Кол-во символов: 313
Источник: http://happymodern.ru/dizajn-odnokomnatnoj-kvartiry-40-kv-m/
12. Стильный дизайн квартиры студии 40 кв м с идеальной планировкой
Следующие две квартиры в нашем списке имеют очень похожую планировку, при которой только ванная комната располагается в отдельном помещении, а прихожая, кухня, гостиная и спальня объединены в одно целое. Для удобства спальня может быть отделена от гостиной стеклянной перегородкой со шторами или (как во втором варианте) гибкой рулонной перегородкой. Благодаря отсутствию стен и дверей (кроме ванной комнаты) достигается общая легкость и одухотворенность интерьера. Стильный дизайн квартиры студии станет вашей визиткой карточкой при встрече гостей.
Как видите, в первом случае для украшения интерьера и отделения кухни от прихожей используется интересная декоративная перегородка с узором от пола до потолка. В отличие от целостной стены, она сохраняет единство пространства, принося в него немного креатива, но не более того. Во втором варианте проектируя дизайн квартиры студии дизайнеры решили вовсе не разграничивать эти зоны.
Интересно, какой вариант дизайна однокомнатной квартиры 40 кв м из этих двоих вам нравится больше? Поделитесь своим мнением в комментариях!
Блок: 13/16 | Кол-во символов: 1146
Источник: https://dekorin.me/dizajn-odnokomnatnoj-kvartiry-40-kv-m-foto/
Модульная мебель
Секционная или модульная мебель – это как конструктор для взрослых. Особенно это удобно, если ее делают под заказ, то есть под размер комнаты. Модульные системы удобны тем, что их можно поставить где угодно и скомбинировать так, как удобно, хоть всю свободную стену ими заполнить.
Важно! Удобство таких гарнитуров состоит в в том, что стилистика выдержана единая для всех элементов коллекции – от навесных шкафов до компьютерного стола. Такое решение упрощает процесс организации пространства.
Интерьер в стиле модерн с роскошной кроватью
Модульная система хранения с кроватью-трансформером
Блок: 13/17 | Кол-во символов: 610
Источник: http://happymodern.ru/dizajn-odnokomnatnoj-kvartiry-40-kv-m/
13. Роскошный дизайн квартиры площадью 35 кв. м
Пока мы плавно приближаемся к завершению этой статьи, уже очевидно, что прозрачные стеклянные перегородки между залом и спальней — это ключевой момент в создании свободного и комфортного дизайна квартир площадью до 40 кв м и превращения маленькой «однушки» во вполне удобную «двушку». Данная шикарная квартира размером 35 квадратных метров не стала исключением. Особенным её делает смелый дизайн и цветовая схема — вместо светлых тонов и минимализма здесь мы видим яркие фиолетовые и бирюзовые акценты на стильном сером фоне, а также массивные светильники (расположенные в правильном месте!), камин и совершенно ошеломительную мраморную ванную комнату.
Кто посмеет сказать, что это крохотное жилище не является роскошным?
Блок: 14/16 | Кол-во символов: 775
Источник: https://dekorin.me/dizajn-odnokomnatnoj-kvartiry-40-kv-m-foto/
Шкаф-купе для однокомнатной квартиры
Это отменное решение! Сделав такой шкаф на заказ, можно поставить его под стеной от пола до потолка, и так удастся задействовать всю площадь. Удобство заказа системы хранения в том, что ее можно наполнить как угодно, по своему усмотрению.
Блок: 14/17 | Кол-во символов: 277
Источник: http://happymodern.ru/dizajn-odnokomnatnoj-kvartiry-40-kv-m/
14. Современный дизайн квартиры 40 кв. м. в стиле китайский минимализм
С одной стороны, этот дизайн однокомнатной квартиры 40 кв м включает в себя только простые декоративные элементы, но все вместе они создают очень красивую и жизнерадостную атмосферу жилища.
Минималистская мебель строгих прямоугольных форм очень элегантно и свежо выглядит на фоне ярких зеленых, розовых и фиолетовых акцентов. Спальня, отделенная романтической полупрозрачной перегородкой, обладает большим шкафом-купе, а ванная, куда ведет дверь из кухни-гостиной, имеет узкую душевую кабину, благодаря которой здесь удалось вместить и стиральную машину.
Блок: 15/16 | Кол-во символов: 630
Источник: https://dekorin.me/dizajn-odnokomnatnoj-kvartiry-40-kv-m-foto/
Мебель-трансформер
Даже в столь ограниченном пространстве хочется иметь свободное место, но при том, что в помещении нужно разместить много предметов, это воплотить довольно сложно, но реально. На выручку приходит мебель-трансформер. Имеется в виду не складной диван или кресло, а реально функциональные предметы, которые могут превращаться в другие, среди которых:
Рабочая зона, спрятанная в шкаф
Минималистский интерьер с кроватью, вмонтированной в шкаф
- Откидной столик, который служит хранилищем мягких игрушек в ночное время.
- Кресло-комод для складирования сезонных вещей.
- Кровать, которую можно убрать в шкаф.
- Шкаф-купе. В него можно прятать гладильную доску, столик. Даже бывает ящик, который опускается, а не выдвигается.
Яркий современный интерьер
Дизайн с элементами кантри
Важно! При создании интерьера и заказе мебели следует полностью полагаться на себя. Никто, кроме самих хозяев, не сможет максимально удобно организовать пространство.
Блок: 15/17 | Кол-во символов: 951
Источник: http://happymodern.ru/dizajn-odnokomnatnoj-kvartiry-40-kv-m/
15. Дизайн квартиры студии 40 кв м в молодежном и креативном стиле
Завершаем наш сегодняшний пост очень милой, молодежной и уютной однокомнатной квартирой в городе Араде, Румыния. Кроме приятной цветовой схемы, сочетающей в себе легкие нейтральные тона с деталями практически всех цветов радуги, вас может приятно удивить полка-перегородка в гостиной, велосипед в ванной, кровать на платформе и подвесной шкаф-стол. Все в этой потрясающей квартире так и дышит любовью к жизни и окружающему миру! Возможно дизайн квартиры студии в молодежном стиле придётся по душе и людям более старшего возраста.
Мы очень старались собрать здесь самые разнообразные дизайны квартир для людей с разными вкусами и потребностями. Поэтому будем очень рады получить узнать ваше мнение. Пожалуйста, поделитесь с нами и нашими читателями: какой вариант дизайна однокомнатной квартиры 40 кв м вам понравился больше других? Что для вас важнее: большая кухня или просторная спальня? Уют или практичный минимализм? Прозрачные перегородки или твердые стены?
Еще больше идей для дизайна маленьких квартир вы можете получить в наших статьях:
Стильные квартиры студии (40 фото интерьеров)
17 лучших дизайнов маленьких квартир
Блок: 16/16 | Кол-во символов: 1200
Источник: https://dekorin.me/dizajn-odnokomnatnoj-kvartiry-40-kv-m-foto/
Количество использованных доноров: 4
Информация по каждому донору:
- https://dekorin.me/dizajn-odnokomnatnoj-kvartiry-40-kv-m-foto/: использовано 13 блоков из 16, кол-во символов 9399 (27%)
- https://strojka-gid.ru/kvartira-40-kv-m/: использовано 4 блоков из 6, кол-во символов 3466 (10%)
- http://happymodern.ru/dizajn-odnokomnatnoj-kvartiry-40-kv-m/: использовано 14 блоков из 17, кол-во символов 8199 (24%)
- https://remont-book.com/dizajn-odnokomnatnoj-kvartiry-40-kv-m/: использовано 3 блоков из 5, кол-во символов 13578 (39%)
новой жизни «убитых» квартир. Однушка. До и после ремонта Мой дом до и после
До ремонта это была стандартная однокомнатная квартира в доме II-67 серии. Однако дизайнеру удалось создать уникальное пространство
.Двенадцатиэтажная кирпичная башня серии II-67 была построена в Восточном Измайлово (Москва) еще в 1974 году. Ремонт тоже оставлял желать лучшего: старые бумажные обои на криволинейных стенах и нестандартные дверные проемы. Особое внимание нужно было уделить снаряжению.«Сантехника была в ужасном состоянии, — говорит автор проекта, дизайнер Марина Саргсян. В планировку газовой плиты также внесли свои коррективы. Не обошлось и без сюрпризов: альков и кладовая, оставшиеся от предыдущих хозяев, создали пространство для активности.
Новые хозяева, супруги среднего возраста, попросили дизайнера превратить эту однушку в квартиру, пригодную для проживания: оборудовать спальню с полноценной двухспальной кроватью, гостиную, рабочий стол, а также кладовку на 40 кв. метров.
Место: Москва
Площадь: 40.9 кв.м
Год: 2015
Кто здесь живет: пара среднего возраста
Автор проекта: Марина Саркисян
Неожиданные факты: Наконец В тот момент дизайнеру и покупателям пришлось снова выбирать мебель: из-за изменения курса валют изначально выбранные варианты оказались слишком дорогими.
Бюджет: 1,4 млн рублей
Фото: Сергей Красюк
Марина решила не объединять пространство маленькой квартиры, а сохранить стену между кухней и гостиной.Более того, дизайнер предложил разделить комнату на три части. Итак, возле окна получилась спальня. «Просыпаясь, очень приятно видеть солнышко», — объясняет свое решение автор проекта. С помощью перегородки можно было отделить зону приема гостей. А возле двери оборудован шкаф-купе.
Перед фото
ПЕРЕД: Обратите внимание на нишу, оставшуюся от прежних хозяев квартиры. Марина превратила его в закрытую гримерку.
Гримерная находится за дверью с левой стороны. Внутри — вместительный шкаф-купе.
Шкаф на заказ
Акцент в интерьере сделан на перегородку. Не доминировала даже яркая обивка дивана и сочные цвета штор.
«Я хотела, чтобы перегородка работала», — говорит Марина. Поэтому со стороны гостиной она выполнена в виде витрины, на полки которой можно поставить посуду и сувениры, привезенные хозяевами из путешествий.А со стороны спальной зоны перегородка сделана в виде закрытых шкафов для хранения белья и постельных принадлежностей.
Шкафы изготавливаются под заказ; освещение : Дож Люс от Венеции
Хозяева квартиры любят рисовать акварелью, поэтому дизайнер предложил установить в зоне гостиной диван с яркой цветочной обивкой, на фоне которого акварели будут смотреться наиболее выигрышно.
Мебель: ИНЛАВКА, серия Густавьен
В спальне продолжается тема растительного орнамента.«Обои Eijffinger из коллекции Lavender Dream идеально подошли для спальной зоны», — вспоминает Марина.
Однако цветочная феерия на этом не заканчивается. Также цветы использовались в оформлении кухни и балкона. «Гортензии в столовой великолепны! В них простота и интеллект, глубина и эстетика … Мне показалось, что они очень подходят для имиджа заказчика », — говорит Марина.
В спальне много естественного света. Ведь бывает не только стандартное окно, но и дверь на лоджию.
Кровать: Дьюла от Мечта Земля ; диван : ИНЛАВКА ; около боев: Lavender Dream от Eijffinger; коровник: Orac Decor; в встраиваемые светильники: Donolux
Пудрово-серый и нежно-бледно-лиловые оттенки в этом пространстве — еще одно желание покупателей.
Перед фото
ДО: Теперь пойдем на кухню.Скорее в кухне-столовой, которая через полгода станет комнатой.
В отличие от гостиной, дизайнер решил оставить эту комнату единой, даже несмотря на форму. «Комната вытянута, как карета. Но мы не хотели разделять пространство и решили максимально использовать параметры кухни для кухонных шкафов », — говорит Марина.
Роль перегородки могло сыграть зеркало над обеденным столом. Однако при ремонте от этой техники отказались.Также в первоначальные планы внесла свои коррективы газовая плита — перенести на новое место не удалось.
ПОСЛЕ: По окончании работ кухня в форме буквы «Г» заняла две стены. За дверьми было достаточно места, чтобы разместить всю необходимую бытовую технику.
Марина использовала одинаковые полы в гостиной, в спальне, на кухне и в коридоре. «Покупатели повсюду хотели массивную доску», — объясняет дизайнер.- В кухонной зоне керамогранит изначально задумывался как модульный паркет. Но, исходя из пожеланий покупателей, было решено сочетать плитку с массивной доской. На стыке использовался пробковый компенсатор. ”
Полы: Массивная доска Дуб Цезарь Нордик, Паркетный зал; матовая плитка: Vodevil от Vives Ceramica восьмиугольная форма
Кухня выполнена в светло-серых тонах в сочетании с оттенками нежно-розового и сиреневого, которые «добавляют» интерьеру.
Подготовка к ремонту начинается за несколько месяцев до начала самих работ с изготовлением проекта. Он может включать: план квартиры с расстановкой мебели и освещения, подбор отделочных материалов, подбор мебели и аксессуаров, визуализации, эскизные или рабочие чертежи. Дизайн-проект выполняется в среднем от одного до трех месяцев. Если ремонт предполагает перепланировку, установку проемов в несущих стенах, изменение расположения водопровода и газового оборудования, необходимо будет сделать рабочие чертежи по всем участкам проекта, пройти строительную экспертизу, согласовать проект в городских службах, и заключить договор с управляющей компанией.Это может занять еще 2-3 месяца. Конечно, при желании сэкономить ремонт возможен и без дизайн-проекта, однако риски, с которыми вы столкнетесь, могут в итоге свести на нет все финансовые выгоды от такого решения.Практически любой ремонт начинается с демонтажа: удаляются старые обои, лакокрасочное покрытие, полы, ламинат, убираются ненужные перегородки, убирается плитка, старый фаянс. Основная задача демонтажа — подготовка основания (стен, потолка, пола) к дальнейшей отделке.Основание должно быть сухим, очищенным от всех использованных ранее строительных материалов. Перегородки квартир возводятся из пеноблоков, кирпича, пазогребня и гипсокартона. У каждого из этих материалов есть свои плюсы и минусы, на наш взгляд, наиболее оптимальным решением является возведение перегородок из пеноблоков толщиной 10 см, — при повышенных требованиях к звукоизоляции помещений возможно строительство перегородок из пеноблоков. пеноблок толщиной 15 см, это съедает дополнительную площадь помещения, но придает стенам фундаментальность и отличные шумоизоляционные качества.Перегородка из пеноблока крепится только к полу и боковым стенам, между стеной и потолком остается зазор 3 см — это нужно, чтобы перекрытие при усадке дома не давило на перегородку, особенно это требование Это актуально в новостройках, так как усадка через 2-3 года может существенно испортить ремонт. Обязательным условием возведения перегородок является армирование через каждые 3-5 рядов и привязка к стенам.
Следующий этап ремонта — штукатурка.Штукатурка в квартирах выполняется преимущественно гипсовыми штукатурками. Все стены оштукатурены до уровня. Некоторые помещения рекомендуем оштукатурить «по углам» — это особенно актуально для ванных комнат и кухонь, также желательно оштукатурить углы комнаты, где на полу планируется плитка, так как это сразу покажет все отличия стен. . Время высыхания штукатурки во многом зависит от толщины слоя и погодных условий. Например, при толщине слоя 6 см и температуре улицы 25 градусов штукатурка полностью высохнет за 15-18 дней.При такой же толщине слоя, но при температуре 15 градусов штукатурка будет сохнуть не менее 20 дней.
Важным технологическим аспектом штукатурки является однослойное нанесение. Гипсокартон достаточно быстро застывает, но сохнет, как мы писали ранее, не менее двух недель. Часто слой 4-5 см делится на «грубый» слой и «финишный» слой, то есть наносится слой 3 см, а затем через несколько часов или дней на него наносится второй слой, в результате чего получается два разных слоя.Это чревато тем, что со временем стены начнут «звонить» при простукивании, потому что верхний слой недостаточно сильно сцепляется с нижним. Отслоение возможно даже после завершения ремонта, если соседи, например, начнут ремонт позже вас, вибрация от электромонтажных работ может вызвать отслоение штукатурки в некоторых местах. Штукатурку следует наносить одним слоем и не должно быть растяжения тонким слоем. Если слой штукатурки более 5-6 см, то однослойная штукатурка практически невозможна, в этом случае необходимо нанести неровный (шлепок, рваный, зазубренный) первый слой и либо практически сразу, либо после ожидания полного сушка для нанесения последнего слоя штукатурки.
Отопительное оборудование и коммуникации прокладываются и монтируются после штукатурных работ. При проведении ремонта в квартире часто ограничиваются простой заменой батарей отопления на современные модели, также возможна замена всех контуров отопления, если она выполнена по коллекторной схеме. На подающих трубопроводах рекомендуется установить запорные краны, что позволит регулировать теплоотдачу радиатора. На этапе отделки временно снимаются батарейки.После того, как обои будут наклеены или возникнет необходимость в сварке. Электрообогрев пола в ванной или кухне можно смонтировать на этапе изготовления стяжки пола или укладки плитки, это зависит от типа выбранного нагревательного кабеля.
После штукатурных работ начинается этап электромонтажных работ. Для выполнения электромонтажных работ необходимо составить план размещения розеток, выключателей и основных потребителей, затем на основании этих данных производится проектный расчет нагрузок и выполняется комплекс работ по монтажу электропроводки.Еще хотелось бы пояснить, почему после штукатурки производятся инженерные работы. Проблема в том, что при проведении работ перед штукатуркой сильно страдает точность установки розеток и выводов для смесителей, так как геометрия помещения, которое образуется после штукатурки, неизвестна. Работу приходится рвать на части, что сказывается не в лучшую сторону. Более того, очень часто при проведении штукатурных работ вслед за электриком возникают проблемы с повреждением уложенной на полу электропроводки.- по этим причинам мы рекомендуем после оштукатуривания произвести электрика.
Отделка цементно-песчаных стяжек и оснований деревянных полов выполняется сразу после завершения штукатурных работ и устройства коммуникаций. Цементная стяжка представляет собой смесь М300 с добавлением пластификатора. При высыхании стяжка давит на стены, что влечет за собой поднятие стяжки и отслаивание, во избежание этого по периметру стен укладывают герметик, который создает зазор не менее 1 см.Стяжка не должна быстро пересыхать, для этого после укладки и затирки окна в квартире желательно накрыть темной пленкой, а саму стяжку обильно пролить и накрыть пленкой, что создаст «парниковый эффект» «. Цементно-песчаная стяжка при толщине слоя более 8 см имеет небольшую усадку. Это говорит о том, что после высыхания стяжка будет иметь погрешности в плоскости.
Срок полного высыхания стяжки не менее 20 дней. Если стяжка заливается по трубам отопления теплого пола не менее трех недель, нагрев нельзя включать, он может деформироваться.При этом в момент заливки трубы должны быть заполнены теплоносителем под номинальным рабочим давлением. Для получения идеального основания делают полы под полом.
Отделка ванных комнат — пожалуй, самый сложный этап из всех ремонтов. Укладка плитки — процесс трудоемкий и длительный; для хорошего результата требуется внимание и аккуратность исполнителя. На итоговое качество укладки сильно влияет качество плитки, к сожалению, определить это можно только по прибытии плитки на объект, так как качество сильно варьируется от партии к партии и невозможно определить, какая плитка будет быть доставлен вам в магазин.К сожалению, для плитки, как ни для чего другого, действует правило: чем красивее плитка, тем сложнее выкладка, чем больше вставок, бордюров и декоров — тем хуже качество укладки. Обратите внимание на размер плитки, например, плитка 20 см на 20 см будет намного «ровнее», чем плитка 20 см на 40 см, то есть чем больше и «длиннее» плитка, тем хуже его качество. В процессе мы даем более подробные рекомендации по этому поводу. Монтаж фаянса осуществляется по окончании плиточных работ.Установка фаянса включает: установку акриловой ванны, установку чугунной ванны, сборку умывальника, подключение полотенцесушителя, установку смесителей, установку унитаза, биде, подключение к гидромассажной ванне.
Сантехническое оборудование и электроприборы устанавливаются только после того, как полностью завершены плиточные работы, отделаны стены и потолки, произведена уборка. Примыкание к облицовке сантехнической керамики (умывальников, унитазов, биде) уплотняется.Затягивать гайки на хромированных смесителях и полотенцесушителе можно только ключами с мягкими резиновыми выступами, чтобы не оставлять на них царапин. Возможно, установку ванны и душа стоит начать немного раньше, на этапе облицовочных работ. Если плитку следует уложить поверх боковой стороны ванны или поддона, ванна устанавливается без учета части плитки вокруг нее. После этого вагонка завершена. В последнюю очередь устанавливаются розетки, выключатели и светильники. Механизмы переключателей можно настроить заранее, после оштукатуривания.А вот каркасы и фасадные панели — только после того, как стены будут полностью готовы.
Отделкой называют квалифицированную работу, завершающую отделку стен и потолка. Значительную часть общего времени они берут на ремонтно-отделочные работы. Отделочные малярные работы — покраска стен и потолка, оклейка обоями, декоративная штукатурка. Предварительно поверхности обрабатываются грунтовками. Покраска проводится в 2-4 слоя, каждый из которых должен высохнуть. Малярные работы связаны с испарением большого количества воды, но невозможно проветрить помещение до полного высыхания обоев, красок и отделочных составов.Сложные декоративные покрытия относятся к отдельной группе особо трудоемких видов отделочных работ. Это тонкий слой венецианской штукатурки, флоки, фактурных красок, других фактурных и фактурных покрытий. В отделочные работы также входит установка плинтусов, карнизов, потолочных перекрытий с пластиковыми или алюминиевыми панелями, деревянных обшивок, установка декоративных панелей и так далее.
Строительную компанию NEW MOSCOW выбрали потому, что мы:
- Экономим Ваши деньги.
- Соблюдаем условия договора.
- Мы используем проверенные материалы.
- Сдаем работу поэтапно.
- Выполняем ремонт вовремя.
- Работаем на совесть.
- Качество гарантируем.
Ежегодно мы сдаем в аренду более 100 объектов!
Наша задача — сделать квартиры и дома комфортными для жизни!
В эркере.Но с исходными данными хозяевам не повезло — в некоторых домах старого фундамента стены построены из настоящего кирпича и их можно сохранить в интерьере в естественном виде. Тут пришлось самому залить. В новостройке сделать стену из кирпича намного проще — в сталине нужно было сначала удалить толстый слой многолетней штукатурки и только после выкладки кирпича.
2 Бюджетный ремонт в Сталине
В этой квартире ремонт хозяева сделали сами.И потратили на все … 185 тысяч рублей. Площадь квартиры 70 кв. Согласитесь, более чем бюджетный. Из-за этого приходилось принимать решения. Итак, как и с убранством в этой комнате. Можно было сломать стены и построить новые (часто это делают в домах старого фундамента), но бюджет не позволял. Поэтому пришлось удалить многолетний слой масляной краски и очистить поверхность, чтобы покрыть новой краской. С обоями было бы сложнее — лепнина на потолке не позволяла наклеить их равномерно и красиво.Несмотря на сложности, хозяевам удалось создать яркое и привлекательное пространство, а лепнина и, опять же натянутая на ткань, добавили интерьеру особого колорита.
3 Комната в хрущевке
Рассказ о том, как из грязного и тесного пространства сделать новое комфортное место для жизни. В спальню, и даже в гостиную поместятся. Для этого пришлось сделать хозяевам, и теперь кровать от гостиной отделена занавеской. Это хорошее решение, так как в слишком маленьком помещении глухие стены только утяжеляют пространство.
Отличная находка — рабочее место на высоком подоконнике.
В целом получившийся интерьер можно охарактеризовать как русский скандинавский стиль с удачными яркими акцентами. Смело вдохновляйтесь такими преобразованиями.
4
На пяти квадратных метрах можно было разместить угловой кухонный гарнитур, небольшой обеденный стол и при этом оставить пространство уютным и лаконичным. Обратите внимание на эту идею — продолжение кухонной столешницы на подоконнике.Прекрасное дополнение рабочего места на кухне.
5 Бюджетный ремонт санузла в новостройке
В этой квартире хозяевам достался ремонт «от застройщика», и, как известно, он редко бывает красивым и функциональным. С помощью окрашивания плитки и эффектных цветовых акцентов хозяйке удалось обойтись без капитального ремонта. Кстати, мы писали о том, как красить плитку. Обратите внимание.
6 Бюджетный ремонт кухни в новостройке
Еще один пример бюджетного, но красивого решения.Застройщик выполнил отделку липкими цветочными обоями, поставил плиту и раковину. Но у хозяев свои взгляды на комфортное пространство. За счет простого легкого гарнитура, однотонной отделки стен и симпатичных аксессуаров создается сам домашний уют.
7 Ремонт в старой детской
Этот пример демонстрирует, как загроможденная комната двух подростков превратилась в просторную и светлую спальню взрослой девушки. При желании достаточно места для второго человека.
8
Здесь остались только окна от старой комнаты. Хозяйка перекрасила полы, сняла старые обои и покрасила стены, а также купила новую негабаритную мебель. Остальное сделали декор и текстиль. Кстати, снимаемая хрущевка квартира — хороший пример для тех, кто боится начинать преобразование арендного жилья. Всегда есть возможность договориться с хозяином квартиры на выгодных условиях.
9 Коридор в хрущевке
После преобразования этот коридор в хрущевке стал меньше.Но это было то, что было задумано. Часть пространства была выделена для расширения санузла, часть — под встроенный шкаф. Тем не менее, функциональные требования выполнены на 100%. Есть место для хранения вещей, небольшой диванчик, на который удобно сесть, чтобы снять или надеть обувь. Светлые тона в отделке и правильный акцент плитки на полу сделали проходную комнату скучной.
Яркий пример домашнего декора в действии.Она привела в порядок однокомнатную квартиру и сделала снимок, который потом использовала для ее продажи.
ВРЕМЯ: 2 недели
ИЗДЕРЖАННЫЕ ДЕНЬГИ:
— Рабочий 26500р
— Черновые материалы 4500р
— Краски 12800р
— Икеа 20600р
— Натяжной потолок + вентиляция в ванной 8500р
— Герметизация дыр в ванной 3000р
— Ковролин в коридоре 2500р
— Ковролин на балконе 3200р
— Цветы 4400 руб.
— Уборка (+ химия) 5600 руб.
_________________
ИТОГО:
СПИСОК ПОКУПКИ В ИКЕА:
стол 2800р
мойка + смеситель + сифон 3800р
гардины перед шкафом + гардины 3400р
светильник на кухню над столом 800р
рулонная штора 2200р
столешница на кухню 2000р
занавеска на кухню 1800р
абажуры белые 4шт 1600р
стол на балкон 2200р
ПЕРЕЧЕНЬ РАБОТ ПО КВАРТИРЕ:
— содрали все обои на стенах
— оштукатурили
— покрасили все стены
— покрасили потолок на кухне и в коридоре
— покрасили плитку на кухне
— заштукатурили трещины
— отремонтировали шкафы на кухне
— поменял столешницу, сифон и смеситель на кухне
— оклеил откосы на окнах
— оклеил подоконник пленкой
— поменял шторку и светильник на кухне
— поменял место лампы
— поставил решетку вентиляции
— поставил подсветку под ящики
— протер швы в ванной белой затиркой
— поменял крючки
— заделал две дырочки (поставил люк)
— сделал вентканал в шахту и поставил вентилятор
— поменял потолок на натяжной с новыми лампочками
— в коридоре поменял лампу
— демонтировал декоративную внутреннюю дверь и дверную коробку
— проложил ступеньку под дверь плиткой
— наложил наличники и добор на проем
— поставил гардинную палку перед шкафом
— приклеил карниз в коридоре над шкафом
— Спрятал интернет-шнур за шкафом наличники и плинтус
— перекрасил пол в спальне
— повесил рулонную штору на окно
— на балконе оштукатурили откос у окна
— бетонная ступенька у двери выложена плиткой
— закинули металлические палки и зеленый пластик лист
— покрасил забор в черный цвет
— покрасил трубку АКБ
— заменил ножку у столешницы на окно, поставил доп.углы к стене
— отшлифовать столешницу и покрасить лаком в 4 слоя
— выбросить мусор в контейнер
— собрать кухонный стол
Фото ДО работ:
| |
| Фото квартиры до проведения домашнего мероприятия. Предметы кухни, требующие переделки |
| |
| Фото квартиры до проведения домашнего мероприятия.Рабочее место с шаткой столешницей и потертым полом |
| |
| Фото квартиры до проведения домашнего мероприятия. Прихожая |
| |
| Фото квартиры до проведения домашнего мероприятия. Пятна на аккумуляторной трубе и обоях, выступающие от стены. |
| |
| Фото квартиры до проведения домашнего мероприятия.Балкон |
| |
| Фото квартиры до проведения домашнего мероприятия. Обои и откосы окна на кухне |
| |
| Фото квартиры до проведения домашнего мероприятия. Прихожая и вторая входная дверь |
| |
| Фото квартиры до проведения домашнего мероприятия.Балкон в первозданном виде. |
| |
| Фото квартиры до проведения домашнего мероприятия. Недостатки в прихожей и кухне |
Фото ДО и ПОСЛЕ работ:
Финальная фотография квартиры. Фото использовалось для рекламы продажи квартир:
Аккуратный внешний вид квартиры и правильная фотосъемка в несколько раз увеличивают количество просмотров, как при аренде, так и при продаже квартиры.
При продаже квартиры было в среднем 3-5 показов в неделю. В результате было продано на 1,2 млн рублей дороже аналогичных опционов.
________________________
Homestaging (хоумстейджинг) — бюджетное преобразование интерьера недвижимости в более привлекательный вид. Чаще всего его используют для подготовки квартиры к продаже или сдаче в аренду. Такие изменения сильно влияют на стоимость и внешний вид квартиры, но стоят недорого.
Если вы хотите подготовить свою квартиру к продаже или аренде, в том числе сделать красивый снимок — напишите по адресу: [email protected]
Дизайн интерьера квартиры-студии со спальней.Лучший дизайн-проект однокомнатной квартиры
Перед дизайнерами стояла задача создать максимально комфортный и стильный интерьер небольшой квартиры-студии. Покупатели пожелали не загромождать свое жилье лишними вещами и создать свободную просторную атмосферу.
Самым удачным сочетанием стилей в данном случае стало гармоничное соединение минимализма и хай-тек. Множество зеркал, стекла, глянцевый блеск и легкие металлические конструкции — вот их характерные черты, наполнявшие небольшие помещения визуальным объемом и свободой.
Кроме того, они придали интерьеру неповторимый современный вид. Пожелания молодоженов — жильцов квартиры — исполнились.
С помощью грамотных дизайнерских приемов в небольшой студии располагаются объемные вместительные системы хранения вещей, кухня с барной стойкой, шикарная кровать для молодой пары и даже зона отдыха с диваном. Все предметы интерьера имеют уникальную фактуру и производятся исключительно из натурального сырья.
Супруги решили создать в квартире неповторимую оригинальную свободную атмосферу, наполненную естественным светом и воздухом.Согласно новому проекту, спальня получила возможность при необходимости превращаться в изолированную зону.
Для этого используется черная штора высокой плотности, прикрепляемая к потолку. Светлая отделка стен и потолка зрительно расширяет пространство, создавая в комнате легкую воздушную атмосферу.
Большое внимание уделяется освещению студии. Дизайнеры постарались применить максимальное количество осветительных приборов, чтобы визуально увеличить объем квартиры.Это и галогенные лампы, встроенные в потолок, и прикроватные торшеры, и изысканные подвесные светильники из металла, и даже напольное светодиодное освещение.
Барная стойка служит своеобразной перегородкой между кухней и гостиной. Напольные покрытия этих пространств, разные по составу, цвету и структуре, обладают удивительным эффектом зонирования соседних комнат.
Ламинат натурального оттенка создает домашнюю теплую атмосферу, а серый керамогранит в прихожей, ванной и кухне подчеркивает неповторимый стиль интерьера.
Гладкие матовые стены в сочетании с неровной бетонной отделкой создают оригинальные современные узоры на кухне. Это придает помещению изюминку и неповторимый шарм.
Сколько баллов по десятибалльной шкале дизайнеры справились с заданием по мнению посетителей Small Interiors?
Действительно, вариантов обустройства «однушки» очень много, и каждый читатель может выбрать проект по своему вкусу, исходя из своих потребностей.Кто-то заботится о стиле в каждой детали интерьера, кто-то заботится о максимальной вместимости квартиры, и будет доволен вариантами установки шкафов, кладовых и всевозможных систем хранения. Другой читатель заинтересуется, как визуально увеличить квартиру, а может даже оборудовать в ней две комнаты (или наоборот превратить квартиру в студию). В этой статье собраны лучшие интерьеры квартир-студий.
Вариант однокомнатной квартиры в светлых тонах
10 лучших дизайн-проектов однокомнатных студий
Первый проект для любителей света и простора.В этой квартире все помещения визуально совмещены с соседними. Между гостиной и кухней стены нет, а дверь в ванную сделана прозрачной. Кроме того, часть гостиной отгорожена прерывистой перегородкой, за ней находится спальня. Перегородка скрывает кровать от посторонних глаз, оставляя при этом ощущение простора и единого пространства квартиры.
Функциональное зонирование однокомнатной квартиры
Спальная зона за перегородкой — «жалюзи»
ВАЖНО: на небольшом пространстве стены и перегородки внутри квартиры зрительно уменьшают пространство.Решетчатая перегородка лишена этого недостатка, при этом свою функцию выполняет на все 100%.
Ванная комната — это стильный симбиоз всего необходимого.
Проект однокомнатной квартиры 40 кв. м
Переходим к следующему проекту, который отличается несколько иной организацией пространства.
Также есть всего 40 квадратных метров, которые разместили и кухня, и гостиная, и рабочая зона со спальным местом.Причем кухня с обеденной зоной отделена от гостиной частичной перегородкой, а кровать находится как бы в гостиной, но отделена от нее прозрачной перегородкой. Такое решение создает ощущение отдельных комнат, не сжимая и без того маленькое пространство. Интерьер выглядит свободным и воздушным, что, несомненно, порадует обитателей этой квартиры.
Однокомнатная квартира гостиная
Удобная организация кухни и обеденной зоны
Стеклянная перегородка, отделяющая «спальню»
Стильный дизайн ванной комнаты
Очередной проект продолжит «хит-парад» удачных решений для однокомнатной квартиры.В нем во главу угла ставится спальня, сохраняя при этом функциональность остальных зон дома.
Студия с просторной спальней
Между гостиной и спальней также есть стеклянная перегородка, но последняя намного больше за счет уменьшения площади кухни. Квартира выглядит светлой и просторной, в ней легко дышится, несмотря на то, что этот проект тоже рассчитан на площадь 40 »квадратов.
Просторная спальня
СОВЕТ: Выделите больше места и внимания той области, в которой вы обычно проводите больше времени.
Компактная обеденная зона
Вид из коридора и устройство санузла
Перепланировка однокомнатной квартиры под студию
Следующий дизайн-проект создает ощущение, что в квартире гораздо больше квадратных метров, чем есть на самом деле.
Топ дизайн-проект большой однокомнатной квартиры
На самом деле все это умещается на площади в 45 «квадратов». Полка устройства за экраном позволяет оптимально использовать пространство, а обилие белого цвета создает ощущение дополнительного пространства. Кухня совмещена со столовой и гостиной, однако при необходимости может быть закрыта подвижной перегородкой. Зонирование в гостиной осуществляется преимущественно расстановкой мебели и цветовым решением.
Зона отдыха
Светлая кухня однокомнатная квартира
Спальня полностью огорожена
Белый цвет визуально увеличивает размер ванной
Планировка однокомнатной квартиры 45 кв. м
Следующий шаг — дизайн однокомнатной квартиры в скандинавском стиле.
Топ дизайн-проект небольшой однокомнатной квартиры
Здесь применено очень удачное решение для организации пространства в маленькой квартире — это кровать «на втором этаже». Это, конечно, экономит пространство комнаты, позволяя разместить жилую зону на одной площади. Кухня в этой квартире — полноценное отдельное помещение, которое может понравиться многим.
Уютная квартира в скандинавском стиле
Вместительная кухня
Дизайн интерьера однокомнатной квартиры фото
В отличие от предыдущих проектов, в следующем примере яркие, насыщенные акценты.
Это снова однокомнатная квартира-студия, в которой позволили с комфортом разместить кухню, обеденную зону и гостиную, а также выделить место под полноценную спальню. Светлые тона зрительно увеличивают пространство, а сочные цвета отдельных элементов интерьера разбавляют общую концепцию и поднимают настроение.
Симбиоз гостиной, столовой и кухни
СОВЕТ: добавление ярких элементов — отличный дизайнерский ход, главное, чтобы они были сбалансированы.
П-образная рабочая зона кухни позволяет максимально использовать пространство
Просторная спальня, превращающая «однушку» в полноценную двухкомнатную квартиру
И снова — очень достойный дизайн-проект однокомнатной квартиры, которая расположена на 45 кв.
В нем есть все — и просторная гостиная, и функциональная кухня, и спальная зона, элегантно скрытая за шторами.Как и в большинстве малогабаритных квартир, для экономии места используются встроенные стеллажи и стеллажи. Барная стойка одновременно является обеденным столом и разделителем зоны. При создании проекта упор сделан на сочетание скандинавского и современного стилей.
Стильная барная стойка и организация кухонного стеллажа
Спальня видна из гостиной, но только по желанию ее обитателей
Подиум спальной зоны сделан из соображений вместимости — есть ящики для постельных принадлежностей и прочего
Кухня в интересной цветовой гамме
Контраст декора с напольной плиткой и подбор сантехники
Балкон выполняет роль дополнительной зоны отдыха
Поэтажный план однокомнатной квартиры
И сразу — еще один проект с аналогичным решением отделить спальню от студии.
При создании проекта дизайнер взял за основу минимализм, что благотворно сказалось на результате. Оттенки дерева задают спокойное настроение, а желтый и синий цвета отдельных элементов делают квартиру интересной и запоминающейся. Кровать здесь, как и в предыдущем проекте, располагается на платформе, которая также служит вместительным хранилищем.
Кровать достаточно высокая, что позволило организовать под ней вместительные ящики
Занавеска отделяет спальню от гостиной
ВАЖНО: размещение кровати на подиуме позволяет использовать вертикальное пространство комнаты, организуя место для хранения вещей в подиуме.
А что делать, если в однокомнатной квартире нужно выделить для ребенка отдельное место? Для этого подойдет следующий проект.
Естественно, площадь для детской придется взять из гостиной и кухни, объединив их в одно пространство. При этом важно делать это с сохранением комфорта, как в этом проекте. Уютная гостиная, рядом с которой находится обеденная зона и кухня с забавными элементами. Детская создана по морским причинам и может легко вместить двоих детей.Вот что означает реальная оптимизация пространства!
Такой интерьер согреет в любую погоду.
Морская кровать — для юных путешественников
Организация игрового пространства для самых маленьких
Проект компактной квартиры-студии с отдельной детской комнатой
Прихожая, выдержанная в общем стиле квартиры
Вместительный санузел
На очереди еще одна однокомнатная квартира для семьи с детьми.
Детская зона частично ограждена стеной, частично стеллажом и полупрозрачной перегородкой, а также вмещает два спальных места, но теперь она находится на разных кроватях по обе стороны от входа в детскую. Вся стена комнаты отдана под вместительный шкаф-купе. Организация света в этом проекте, несомненно, подарит ощущение тепла и уюта в любой пасмурный и холодный день.
Слева от входа в детскую — одна из кроватей и письменный стол
Вторая кровать с другой стороны от входа
Санузел в хит-парадах малогабаритной квартиры — душ
Обеденная зона и множество кухонных столешниц
Однокомнатную квартиру можно превратить в шедевр, главное — желание!
Содержимое:
Дизайн квартиры 30 кв.м. в классическом стиле переделана минимальная площадь квадратных метров в уютную студию с отдельным спальным местом. Большое внимание в интерьере уделяется зеркальным поверхностям и освещению.
Светлая однокомнатная квартира 30 кв м. с барной стойкой и модными шторами в гостиной — Фото
Отделка, перепланировка
Небольшая однокомнатная квартира с грамотным зонированием делится на 3 основных составляющих:
- кухня,
- отдельное место под спальню в однокомнатной квартире,
- место отдыха (диванная зона).
Убрана перегородка между кухней, комнатой и коридором. Внутренняя отделка выполнена с использованием гипсокартона. С его помощью и металлическим профилем были созданы ниши для телевизора и небольшая кладовая, в которой находится стиральная машина.
Интерьер гостиной после ремонта. Спальня из зонированного гипсокартона в однокомнатной квартире — Фото
Стены оштукатурены и окрашены белой краской на водной основе.
Редевелопмент однокомнатной квартиры 30 кв.м. объединили кухню и гостиную в единое пространство.
Пол здесь отделан светлым ламинатом, а в коридоре, ванной и частично на кухне выложен плиткой в виде орнамента.
Потолок выровнен, обшит по периметру гипсовой лепниной средней толщины.
В интерьере однокомнатной квартиры большое место отведено зеркальным поверхностям. Встроенный шкаф украшен фигурными зеркальными вставками, большое зеркало находится в коридоре и, выложенное в виде плитки, в стене между кухней и зоной дивана.Эта отделка расширяет границы.
Ванная комната небольшая, отделка выполнена в виде имитации под кирпичную стену, с узорчатым бордюром.
Отдельная спальная кровать в однокомнатной квартире из гипсокартона — Фото
Перепланировка однокомнатной квартиры. Дизайн светлой гостиной с черной барной стойкой — Фото
Мебель в интерьере
Дизайн квартиры 30 кв. м. б / у в основном встроенная мебель:
- шкаф в прихожей для верхней одежды,
- вместительный шкаф в спальной зоне с множеством отделений,
- полок в зоне отдыха, стилизованных под картину в раме.
Санузел совмещенный, в наличии только необходимая сантехника.
В спальной зоне — вместительная кровать пастельных тонов в классическом стиле.
В коридоре контраст поддерживает удобный черный стул с мягкой обивкой.
Кухня меблирована, частично навесной черный гарнитур с белыми принтами. Фартук оформлен в стиле беленой кирпичной кладки. Вот высокие барные стулья из молочной кожи на хромированной ножке.
Дизайн длинной узкой маленькой кухни с черными фасадами и белой глянцевой плиткой на полу — Фото
Черная барная стойка отделяет кухню от диванной зоны.Он покрыт белой столешницей, что делает переход более плавным. Сразу за прилавком раскладывающийся диван цвета слоновой кости. При необходимости его можно использовать для гостей в качестве дополнительной кровати.
В зоне отдыха возле двери на балкон сплит-система с хромированной поверхностью, которая выдает элементы дизайна в стиле хай-тек.
Большая двуспальная кровать и шкаф в отдельной спальне в однокомнатной квартире площадью 30 кв. м. — Фото
Зеркало в гостиной у барной стойки — Фото
Освещение квартиры
Дизайнер квартиры уделил большое внимание освещению, и именно такое сочетание многочисленных зеркал создает визуальное расширение пространства.
В каждой зоне предусмотрены отдельные источники искусственного света. Кухня-гостиная в однокомнатной квартире — студии освещена люстрами современного дизайна, расположенными примерно в середине каждой зоны.
Кухня в рабочей зоне имеет собственный источник света. Цепочка от потолка подчеркивает классический стиль нот. В зоне для сна, помимо большого источника, предусмотрен бра для использования на ночь. Благодаря интенсивному освещению интерьер кажется максимально легким и воздушным, несмотря на черный цвет мебели на кухне.
Дизайн светлой совмещенной гостиной с барной стойкой для зонирования и высокими барными стульями — Фото
Декор
Небольшая однокомнатная квартира 30 кв. м. дополнены множеством декоративных элементов. Все они соответствуют общим цветам выбранного стиля.
Ночник на штативе черный, как и многие кухонные принадлежности и ящики для мелких предметов. В этом оттенке можно увидеть радиаторы отопления, стилизованные под начало прошлого века, подсвечники, фигурки на встроенных стеллажах.
Санузел совмещенный с душевой кабиной и подвесным унитазом — Фото
Каркас большого зеркала в коридоре выполнен из легкого металла, матового цвета. Особым украшением является белая голова лошади.
В кладовой стоит чудесная плетеная черная корзина для белья. Гардины в гостиной цвета «кофе с молоком» и орнамент завершают дизайн интерьера однокомнатной квартиры. Карниз для штор получается очень лаконичным.
Большое зеркало в раме в прихожей и шкаф для верхней одежды.Дизайн небольшого коридора 4-6 кв. м. — Фото
Фотогалерея проекта полностью
Большое зеркало в раме в коридоре. Дизайн небольшого коридора 4-6 кв. м. — Фото Совмещенный санузел с душевой кабиной и подвесным унитазом — Фото
Перепланировка однокомнатной квартиры. Дизайн светлой гостиной с черной полосой — Фото Интерьер гостиной после ремонта. Огражденная гипсокартоном спальня в однокомнатной квартире — Фото Отдельное спальное место в однокомнатной квартире из гипсокартона — Фото
Дизайн длинной узкой маленькой кухни с черными фасадами и белой глянцевой плиткой на полу — Фото
Само название жилого комплекса TriBeCa Apartments, в котором планирует жить владелец этого интерьера, напоминает район Нижнего Манхэттена.New York Tribeca облюбовала местная богема: художники, актеры, модели и другие знаменитости. А дизайнеры Павел Годяев и Евгений Жданов из студии GP Project вдохновили интерьер квартир на стиль американской классики.
Формально квартира сдавалась без отделки и со свободной планировкой, но на самом деле свободы было мало. Необходимо было учитывать расположение подступенка, вытянутую форму квартиры и, самое главное, панорамное окно в торцевой стене — единственный источник естественного света.Кроме того, заказчик мечтал об изолированной спальне, в которой будет много солнечного света.
Для решения этой непростой задачи конструкторами было разработано 3 варианта компоновки в 6–7 вариациях, но самый необычный оказался лучшим. Общая комната не имела общих капитальных стен, а ограничивалась лишь стеклянной перегородкой. Выглядит необычно и современно, но не перегружает интерьер, так как абсолютно прозрачен.
Но спальня по-прежнему остается интимным пространством. Поэтому по периметру перегородки был предусмотрен электрический карниз, благодаря которому достаточно нажать культовую кнопку, чтобы закрыть штору и удалиться.А стенка у кровати превратилась в огромное мягкое стеганое изголовье, как в настоящем классическом будуаре.
В коридоре разместили основную систему хранения — в коридоре по всей стене установили вместительный шкаф для одежды и открытые полки для книг и необходимых мелочей. Дополнительно в гостиной небольшой комод под телевизором, в спальне — прикроватная тумбочка, а на кухне — линейный гарнитур с двумя рядами шкафов под потолком.При входе в зал появилась зеркальная консоль для ключей. Также его можно использовать как туалетный столик.
Американская классика славится обилием декора и аксессуаров, но на скромной площади их не должно быть слишком много. Поэтому дизайнеры совместили красоту и функциональность — использовали декоративные светильники. Над мягким уголком в гостиной появились подвесные обручи, в спальне по обе стороны кровати появились сияющие стеклянные шары, а в углу в элегантных подсвечниках стояло несколько свечей.
Конечно, не хватает симметрии, чтобы полностью соответствовать стилю интерьера. Полноценная диванная группа и пара витрин лишь загромождают и без того маленькую комнату. Но нашлось место для электрокамина, который вмонтировали в комод под телевизором. И именно он стал центром гостиной, вокруг которой соберутся родственники и друзья хозяйки дома.
Интерьер недели: квартира со стеклянными перегородками
Малая неделя: однокомнатная квартира для девочки
Проект недели: студия с раздвижными перегородками
Создайте интерьер из товаров из магазина INMYROOM.
Традиционно квартира-студия представляет собой единое жилое пространство, объединяющее все общественные зоны. За счет отсутствия перегородок такая квартира выглядит просторной и светлой.
На фото:
Спальня хоть и занимает небольшое пространство, но ее дизайн поддерживает общую стилистическую концепцию.
Информация о квартире: 1-комнатная квартира 53,6 кв. м в Челябинске.
Собственников квартиры: молодоженов.
Желания клиентов: Создать самое чистое, светлое пространство с элементами золота и роскоши.
Мастерство дизайнера Ирины Фефеловой проявилось в создании ощущения большого пространства при скромных метражах жилища (площадь однокомнатной квартиры всего чуть больше 53 кв. М). Хозяева квартиры — молодые бизнесмены — особенно ценят ощущение уюта и комфорта в доме, поэтому было решено освободить место под большую общественную зону, а спальню оборудовать в комнате скромных размеров.
Для цветовой гаммы дизайнер выбрал классическое сочетание белого и золотого и изысканного белого и черного.
В результате совмещенное пространство гостиной, кухни и столовой выглядит нарядно и уютно, идеально подходит как для приема гостей, так и для повседневной жизни. Горящая золотом лепнина на стенах, солнечный свет, льющийся из окна — все это придает интерьеру глубину и торжественность.
Самое роскошное место в этом доме — спальня.В нем есть все атрибуты роскоши — меховая накидка и золотое одеяло на кровати, светильники оригинальной формы и большой постер в изящной рамке.
Богато украшенная прихожая сразу представляет общий стиль интерьерного решения — изысканные обои, золотая лепнина, классические светильники с богатой отделкой.
Зона отдыха с легким диваном со съемными чехлами задумывалась как центральная часть дома.
Зона кухни не отделена от зоны отдыха.Благодаря этому все пространство гостиной наполнено воздухом и светом.
Желание хозяина привнести черный цвет в интерьер было одним из главных в дизайне ванной комнаты.
В то же время интерьер черно-белой ванны неоднороден — на плитку нанесен узор, повторяющий узор обоев, потолок обрамлен черной лепкой, рама зеркала покрыта витиеватыми завитками.
Комментарий в ФБ Комментарий в ВК
лучших вариантов дизайна Интерьер однокомнатной квартиры 40 кв.м
Рынок жилья очень разнообразен, но не все могут позволить себе приобрести элитные апартаменты с большой площадью.Многим приходится жить в маленьких квартирах. Несмотря на это, при грамотном подходе к планировке можно отлично разместить все необходимое, что даже оставляет свободное пространство.
Даже в однокомнатной квартире 40 кв.м. можно создать атмосферу уюта и комфорта. Как добиться такого результата, вы узнаете, прочитав нашу статью. Дизайнерские идеи, которые можно учесть при обустройстве дома.
Особенности дизайна малогабаритных квартир
Малогабаритное жилье требует особого подхода при разработке концепции ремонта и проекта будущего дизайна.В первую очередь определите, сколько жильцов будет в квартире.
Для одного человека или молодой пары без детей вполне подойдет пространство открытой планировки, где в общей зоне можно расположить кухню и гостиную или спальню с гостиной.
Если речь идет о большой семье или проживании нескольких поколений под одной крышей, то без зонирования пространства не обойтись.
В этом случае придется использовать различные перегородки, раздвижные шторы или специальную многофункциональную мебель.Многоуровневая система освещения внесет разнообразие в интерьер и наполнит его пространством.
Тогда нужно определиться со стилем помещения. При выборе варианта лучше обратить внимание на стиль, не требующий чрезмерного количества мебели и декора. Такой дизайнерский прием украдет лишние метры и без того небольшого помещения.
Например, классика или прованс будет совсем не уместна, а вот лофт или минимализм не только гармонично впишется в пространство, но и еще больше расширит его.
В современном дизайне квартира 40 кв.м. были изобретены различные техники, позволяющие оптически увеличивать небольшие пространства. Например, зеркальные мебельные фасады раздвигают границы, зрительно добавляя пространства комнате.
Не лишним будет рассмотреть дизайн стен и мебели в светлых тонах. От темных тонов лучше отказаться, они уменьшат количество жилой площади.
Большие оконные проемы сыграют на руку хозяевам небольшой квартиры.Естественный дневной свет, льющийся из окна, добавит интерьеру легкости и воздушности.
Конечно, это не сработает, если вы загромождаете комнату множеством вещей. Поэтому при ремонте квартиры и покупке мебели остановитесь на самом главном. Все ненужные вещи следует исключить из помещения.
Стильные дизайнерские решения интерьера квартиры 40 квадратов
Принцип зонирования
На небольшой площади вполне можно разместить гостиную с рабочей зоной, а также кухню и спальню.Отсутствие стен, скрывающих лишние метры, позволяет создать полноценное и в то же время многофункциональное пространство под каждый вид деятельности. Будь то сон, отдых вечером или приготовление еды.
При использовании принципа зонирования спальное место отделяется от остального пространства занавеской, подобранной к стенам или оконным занавескам.
Интерьер в стиле лофт
Это не только стильный и модный дизайн, но и экономия на внутренней отделке.Ведь для лофта характерны обычные крашеные стены или просто кирпичная кладка, никак не декорированная. А у бетонного потолка с открытой проводкой есть свой особенный стиль, который будет вполне понятен современной молодежи.
Дополнить интерьер необычными винтажными стульями можно со столиком. Зоны в таком помещении также объединены одним пространством, без массивных перегородок. Благодаря этому даже темные оттенки дизайна не скроют драгоценные метры.
Домашний уют
Пастельные тона и разнообразный текстиль сделают гостиную уютной и комфортной.Рациональное зонирование за счет невысоких перегородок гармонично отделяет личную спальную зону от общего обеденного пространства.
Уместно разместить высокие перегородки для разделения большой комнаты перпендикулярно окну, чтобы не перекрывать проникновение дневного света на всю площадь квартиры.
Дополнительное пространство можно создать с помощью мобильной обеденной группы, которая при необходимости сдвигается к стене, освобождая место.
Решение для семьи из нескольких человек
Может показаться, что небольшая квартира совсем не подходит для проживания нескольких человек одновременно. Посмотрев фото дизайна квартиры 40 кв.м, вы поймете, что при грамотной планировке можно добиться результата, когда никто не обделен и для каждого есть личное пространство.
Если в комнате есть балкон или лоджия, утеплите ее и обустройте рабочее или спальное место для одного из членов семьи.Область подоконника послужит своеобразной ширмой и поможет добиться эффекта уединения.
Вместо громоздкой кровати раскладной диван можно разместить в основной части комнаты, сэкономив место в дневные дни.
Кабриолет
Концепция проекта — возможность изменения планировки в любой момент. Основное внимание уделяется многофункциональной модульной мебели, которую можно модифицировать. Так, раскладной стол легко превратится в обеденную или рабочую зону.
Кровать с подъемным механизмом скрывается в нише, а также освобождает место в комнате. Узкие шкафы служат разделителями отдельных зон в комнате, служа еще одним местом для хранения вещей.
Дизайн спальной зоны
Для комфортной жизни любому организму необходимо определенное количество времени для полноценного сна и отдыха. В том случае, если речь идет о однокомнатной квартире, можно использовать дизайнерский подход к созданию спальной зоны.
Достаточно эстетично будет смотреться возвышающаяся ниша под кроватью. Кроме того, будет дополнительное место для хранения крупногабаритных предметов. Гармонично будет смотреться спальный гарнитур у окна, не занимая лишнего места в середине комнаты.
Обеденная зона
Кухонный гарнитур светлых оттенков — практичное решение для обеденной зоны в небольшой квартире. Предметы интерьера должны быть одновременно стильными и функциональными. Поэтому есть смысл объединить обеденную и рабочую зоны, которые при необходимости легко трансформируются друг в друга.
Глянцевые и стеклянные поверхности визуально расширят пространство без потери функциональности.
Гостиная
Для отделения обеденной зоны от гостиной целесообразно использовать невысокую перегородку, которая может служить не только разделителем пространства, но и тумбой под телевизор или дополнительной полкой для посуды. Очень красиво будет смотреться стеклянная перегородка с подсветкой.
Жилая зона — это место, где можно встретить друзей.Разместите в нем удобный диван для гостей и небольшой журнальный столик для чая.
Продумывая дизайн и разрабатывая проект квартиры-студии, следует постараться, чтобы интерьер не был перегружен ненужными предметами, массивной мебелью и темными оттенками. Стеклянные вазы с цветами, красивые картины на стенах, оконный текстиль добавят уюта и помогут создать неповторимый дизайн даже в небольшом помещении.
Фото квартиры 40 кв.м.
Доброго времени суток уважаемые читатели! Наша сегодняшняя статья расскажет, как планировка квартиры-студии, 40 кв. фото примеры, конечно, помогут в этом. Кроме того, мы дадим несколько практических советов, которые помогут сделать правильный и эстетичный дизайн.
Мы поможем тем людям, которые недовольны небольшими размерами помещения, но им просто необходима удобная зона для отдыха и работы, для приема гостей и еды.Приступим к детальному изучению этого вопроса.
Первые шаги в редевелопменте
Перво-наперво вам понадобится чертеж, нарисованный вручную на бумаге или с помощью компьютерных технологий. Идеальным вариантом считается объемная модель, которая со всех сторон раскроет будущий проект. Этот чертеж должен учитывать все ваши потребности, которые необходимы квартире.
Не забывайте, что основная цель таких корректировок — увеличение полезной площади.
Приступая к такому ремонту, убедитесь, что все юридические аспекты в порядке и у вас не возникнет проблем в будущем. Вам нужно будет получить разрешение от соответствующих властей. Имейте в виду, что иногда это занимает много времени.
Самый первый и самый популярный вариант перепланировки, который мы можем себе представить, — это удаление перегородок, разделяющих столовую и гостиную. Это первый и важный этап изменений.Правильность выполнения отразится и в дальнейшем — чем лучше будет проведена процедура, тем вам будет комфортнее. Наша статья содержит несколько фото готовых проектов, чтобы вы поняли, как это должно выглядеть в итоге.
Цветовая схема
Выполнив все «силовые» действия, можно переходить к более расслабленным процедурам. Начнем с выбора цвета дизайна вашей студии. Вы знаете, что цвета по-разному влияют на психофизическое состояние.
Например, обилие желтого или оранжевого цвета привлечет внимание к деталям. Коричневые и красные оттенки обычно рекомендуются для использования в крайних случаях — они могут быть утомительными, если присутствуют в большом количестве.
Песочные оттенки, кремовый, бежевый и пастельно-голубой выбраны как оптимальные цвета для небольших квартир.
Подойдите к выбору цветового оформления со всей серьезностью, ведь именно с этого вы начнете при выборе аксессуаров, штор и т. Д.В наших фото-примерах собрано несколько принципиально разных цветовых схем, чтобы вы могли оценить каждую по достоинству.
Подбор мебели для студии
Теперь вам нужно выбрать, какую мебель вы будете устанавливать в своей комнате. Прежде всего, он должен быть маленьким, удобным и создавать ощущение гармонии с остальным окружением. Постарайтесь избавиться от больших шкафов или кроватей — в маленькой квартире-студии, если они поместятся, будут смотреться очень неуместно.
Размещение, кстати, не менее важно, чем выбор.
Оптимальный вариант для малогабаритных квартир — это мебель-трансформер. В остальном они также представлены как встроенные гарнитуры. Кровать можно легко спрятать в шкаф, тем самым освободив немного места, которое пригодится при выполнении повседневных дел. Сегодня все большую популярность приобретает настенная горка, тоже хороший вариант для студий.
Еще одна идея, заслуживающая особого внимания, — раскладные диваны, которые могут выполнять сразу несколько функциональных задач.Например, так появляются спальные места, ящики для постельного белья, зона отдыха и т. Д. И все это в одном комплекте аксессуаров.
Если вам или вашей семье нравится ужинать вне дома, отличный кухонный стол вам не понадобится. Замени его на складной вариант и ты только выиграешь.
Как должна приветствоваться квартира
Поскольку студии небольшие по размеру, входные двери в них легко создают слепые пространства. В этом случае лучше избавиться от вешалок или прикроватных тумб, которые в любом случае будут мешать.Самый простой способ расставить вещи и обувь — это обустроить шкаф или кладовую.
Таким образом, хорошо экономится место для жилья и исчезают ненужные элементы.
Создайте отдельный уголок для персонального компьютера. Будет хорошо, если там будут все необходимые для работы бумаги и папки. Как вариант, компактные настенные полки.
Несколько слов о гармонии
Гармония — очень важный фактор в ремонте. Это поможет избежать ненужного раздражения.К тому же, придя домой после тяжелого рабочего дня, вы расслабитесь. Вот несколько правил:
- Если ваша мебель из темного ореха, поищите шторы желтого, зеленого и серого цветов. Было бы неграмотно покупать их одного цвета.
- Тем, кто предпочитает черную фурнитуру, мы рекомендуем выбирать элементы в красных, пурпурных и малиновых тонах. Лучше взять фиолетовую пастель, чтобы она не получилась слишком черной и сдержанной.
- Оттенки сосны и бука гармонируют с оранжевыми и серыми шторами.В этом случае лучше избегать бежевого и желтого цветов.
- Отделка из красного дерева не очень хорошо сочетается, как бы странно это ни звучало, с красными оттенками.
Визуальное увеличение пространства
Как уже не раз упоминалось, чтобы зрительно увеличить свободное пространство, выбирайте светлые цвета и оттенки, такие как белый, бежевый, синий.
Если без темного цвета не обойтись, постарайтесь не использовать его как основу. Например, используя темный оттенок для украшения стен, выбирайте белую мебель, которая расширит ваше жилище.
Свет и все, что с ним связано
Освещение маленькой квартиры занимает важное место в создании правильного дизайна … Придерживайтесь основного правила в этом вопросе — чем больше, тем лучше. Не используйте огромную люстру, здесь она просто не нужна. На рынке представлен огромный ассортимент светильников самых разных форм и размеров.
Все предложенные советы легко реализовать своими руками, без привлечения специалистов. Надеемся, вы узнаете что-нибудь для себя и будете гордиться собственным ремонтом.Удачи!
Для создания стильной дизайнерской квартиры 40 кв. важно учитывать все особенности планировки и обустройства функциональных зон. Грамотное зонирование небольших размеров и выбор подходящего стиля наполнят интерьер уютом и красотой.
- Не стоит украшать комнату слишком большим количеством декоративных элементов люстр, так как такая конструкция зрительно опустит потолок. Лучшим вариантом освещения станут многоуровневые точечные светильники.
- Чтобы пространство не выглядело загроможденным, желательно отдать предпочтение компактной встроенной технике и мебели с хорошей вместительностью.
- Рекомендуется выполнять интерьер в более светлых тонах, например, в белом, бежевом, кремовом, песочном или светло-сером, так как темные тона зрительно уменьшат пространство.
- Для оформления окон лучше подойдут тонкие легкие занавески, рулонные модели или жалюзи.
Планировки 40 кв. М.
Чтобы добиться максимально удобной планировки и оригинального дизайна, необходимо заранее подумать о создании детального проекта, включающего технический план и схемы различных коммуникаций и прочего.
В маленькой квартире уместно будет использовать не слишком громоздкую, трансформирующуюся мебель, достаточное количество света, отделку светлых оттенков, зеркальные и глянцевые поверхности, обеспечивающие визуальное расширение пространства.
При прямоугольной форме комнаты важно правильно организовать зонирование, разделив жилую зону на две части, чтобы придать ей более пропорциональный вид.
Для однокомнатной квартиры
В дизайне однокомнатных квартир в первую очередь учитывают геометрическую форму квартиры, а также наличие конструктивных углов, выступов или ниш.С помощью таких элементов можно зонировать пространство без использования дополнительных конструкций.
На фото дизайн однокомнатной квартиры 40 квадратов, с нишей, оборудованной кроватью.
Для тех, кто предпочитает уют, комфортный дизайн и размеренную жизнь, основную часть комнаты можно отвести под спальное место с кроватью, зеркалом, шкафом, комодом и другими системами хранения вещей. Остальную площадь уместно будет оборудовать рабочую зону со столом, креслом или стулом и организовать гостевую комнату с диваном, навесным телевизором и тумбой для размещения различных мелочей.
Однокомнатная квартира
Эта однокомнатная квартира представляет собой единое жилое пространство, состоящее из нескольких функциональных зон с отдельной ванной комнатой, разделенных стенами. Одно из преимуществ такого варианта планировки — значительная сохранность площади, за счет отсутствия дверных конструкций.
На фото интерьер однокомнатной квартиры 40 квадратных метров, выполненный в светлых тонах.
Квартира-студия считается достаточно комфортным решением для небольшой семьи, молодой пары или холостяка. Создавая интерьер, важно не нарушать гармонию окружающего пространства и не перегружать его за счет массивных перегородок, отдавая им предпочтение более легких и мобильных моделей.
Также для поддержания воздушности в помещении лучше использовать модульные предметы мебели или конструкции-трансформеры, чем устанавливать монолитные изделия.В отделке желательно использовать натуральные и экологически чистые материалы, так как под постоянное проживание выделяется всего одна комната.
На фото однокомнатная квартира 40 кв., С гостиной и спальной зоной, разделенными шторами.
Для евро два
Двухкомнатная квартира евростандарта, по сути, представляет собой более расширенный вариант квартиры-студии с отдельной дополнительной комнатой. Самым популярным планировочным решением является разделение этого жилья на кухню-гостиную и спальню.
Также в отдельном помещении иногда оборудуют детскую, а объединенное пространство занимают спальную, кухонную зону, столовую или, при наличии балкона, оборудован кабинет для работы.
На фото интерьер современной кухни-гостиной в 40 кв.
Лоджию также можно использовать как место отдыха, обеденную зону, барную стойку, а также разместить на ней холодильник или духовку.
На фото дизайн квартиры евроквартиры, площадью 40 квадратных метров.
Редевелопмент 40 м2
Перепланировка квартиры из однокомнатной квартиры в двухкомнатную — обычное дело, которое осуществляется за счет капитального ремонта, разделения пространства различными перегородками или установки новых стен. Например, дополнительную комнату часто отводят под детскую, гардеробную, кабинет или даже небольшую гостиную.
Идеи зонирования
Для четкого зонирования используются самые разные дизайнерские приемы. Например, многотекстурная или контрастная отделка, перегородки из гипсокартона, дерева, пластика или стекла, которые за счет лаконичного дизайна не будут загромождать пространство.
При наличии высоких потолков можно отдать предпочтение многоуровневым конструкциям, с установкой верхнего яруса, предназначенного для обустройства спальни или рабочего места.
На фото однокомнатный номер площадью 40 квадратов, со спальной зоной, разделенной шторами.
Отличным разделителем могут стать шторы или мобильные ширмы, которые являются вариантом пола или потолка … Не только добиться разделения площади, но и преобразить внешний вид комнаты практически до неузнаваемости получится с помощью освещение и различное освещение.Также для разделения функциональных зон выбирают стеллажи, комоды или более массивные предметы мебели, в виде шкафа.
На фото зонирование спального места и жилой зоны с помощью невысокого стеллажа, в однокомнатной квартире 40 кв.
Такой вариант, как шкаф-купе, будет особенно уместен в качестве перегородки для спальной зоны. Кроме того, такие элементы мебели могут отличаться любым дизайном, быть двусторонними или представлять собой конструкции купе.Не менее отличным решением являются раздвижные двери из самых разных материалов, которые очень часто используются при зонировании кухни-гостиной.
На фото интерьер однокомнатной квартиры 40 кв., Со стеклянной перегородкой, разделяющей спальную зону.
Дизайн функциональных зон
Варианты оформления для различных сегментов.
Кухня
Кухонное пространство является довольно важной частью жилого пространства и имеет собственное внутреннее зонирование.В совмещенной кухне особое внимание уделяется качественной работе вытяжки и бесшумной работе предметов домашнего обихода. При создании проекта в первую очередь учитывают расположение вентиляции, от которой зависит размещение кухни.
На фото дизайн отдельной кухни в однокомнатной квартире 40 кв.
Для большей практичности и вместительности следует установить гарнитур со шкафчиками под потолком, для удобства оборудовать рабочую поверхность между плитой и мойкой, а также заранее предусмотреть, где будут располагаться электроприборы и розетки для них.Достаточно оригинальная конструкция имеет компактный кухонный остров, что за счет правильного размещения поспособствует реальной экономии квадратных метров.
Дети
При проектировании детской очень важно учитывать количество предметов мебели, их качество и безопасность. Например, для небольшого помещения рациональнее использовать складную мебель, которая дает значительную экономию полезного пространства.
Для семьи с ребенком в однокомнатной квартире или квартире-студии можно подобрать элементы зонирования в виде штор, ширм или предметов интерьера, а также разграничить пространство с помощью различной облицовки пола или стен.Для создания более благоприятной атмосферы в детской рекомендуется устанавливать светильники с рассеянным светом или отражающими свойствами.
На фото — однокомнатная квартира площадью 40 квадратных метров, оборудованная детским уголком.
Гостиная и зона отдыха
В дизайне квартиры 40 кв., Гостиная может быть частью кухни и отделяться перегородкой, барной стойкой или быть отдельной полноценной комнатой с диваном, телевизором, аудиосистемой, креслами, пуфы и прочее.
На фото интерьер гостиной в скандинавском стиле в дизайне квартиры 40 квадратов.
В маленькой комнате не рекомендуется размещать слишком много предметов мебели, чтобы не перегружать комнату. Мягкий ковер, многоформатная и разноформатная отделка стен, а также мягкий ковер помогут придать атмосфере гостевой комнаты особого стиля и комфорта. различные варианты освещения.
На фото дизайн гостевой комнаты в квартире 40 кв.
Шкаф
Корпус 40 квадратов, предполагает достаточно места для организации отдельной гардеробной или для более упрощенного и экономичного решения, которым является установка полок с занавеской в качестве дверей. Такой дизайнерский ход выглядит очень современно и эффектно и придает атмосфере уюта.
Спальная зона
При обустройстве спальной зоны или отдельной спальни используется минимальное количество мебели. Например, они отдают предпочтение встроенным шкафам, занимающим минимум места, сверхузким полочкам и стеллажам у изголовья кровати или компактным угловым конструкциям.
Для существенной экономии места можно заменить спальную кровать на раскладной диван, который в дневное время в собранном виде не отнимет полезные метры. В однокомнатной квартире или квартире-студии кровать устанавливается в специально оборудованную нишу или на подиуме, таким образом достигается красивый, эстетичный и практичный дизайн.
На фото спальная зона, расположенная в нише в интерьере однокомнатной квартиры 40 кв.
Шкаф
Рабочее место часто устраивают в небольшой нише, на лоджии, в углу, совмещают с подоконником или размещают вдоль стены.Наиболее рационально будет дополнить эту секцию складным письменным или компьютерным столом, встроенными стеллажами, неглубоким книжным шкафом или навесными полками.
В угловой квартире у окна можно разместить мини-офис, который обеспечит качественное естественное освещение.
Ванная и туалет
Для небольшой совмещенной ванной особенно уместно будет использовать большие зеркала, расширяющие пространство, квадратную раковину с ящиком для стиральной машины, эргономичные полочки, расположенные над унитазом, компактные душевые кабины, подвесную сантехнику и другие элементы, позволяющие экономить полезное пространство.
На фото интерьер маленькой ванной в серо-белых тонах в дизайне квартиры 40 кв.
Фотографии в разных стилях
В скандинавском дизайне в отделке используются светлые, почти белые оттенки, предметы мебели из натурального дерева, довольно необычные системы хранения в виде ящиков, коробок и корзин, расставленных на полках, а также различный декор, например картины, фотографии, зеленые растения, свечи, шкуры животных, яркая посуда или текстиль.
Стиль минималистский, интерьер выполнен в белых и графичных серых тонах в сочетании с хромированной сталью, стеклом, пластиком, керамикой, искусственными материалами и натуральным камнем. Мебель простой геометрической формы с небольшими изгибами и без лишнего декора. В комнате в основном используется рассеянное освещение и осветительные приборы, в виде неоновых или галогенных ламп, окна украшают вертикальные или горизонтальные жалюзи.
Прованс отличается особой легкостью, непринужденностью и французской романтикой, предполагающей элегантный декор, цветочный принт, винтажную мебель с нотками старины и нежную цветовую гамму, способствующие созданию непередаваемого комфорта.
На фото представлен дизайн однокомнатной квартиры площадью 40 кв.м, выполненный в стиле лофт.
В дизайне современного тренда приветствуются стильные аксессуары, новейшие технологии в сочетании с нейтральной облицовкой. Здесь уместно использовать идеально ровные поверхности, мягкие предметы мебели, модульные многофункциональные конструкции и большое количество осветительных приборов.
Роскошный, дорогой классический интерьер, воплощение прекрасного.В этом стиле симметричные и четкие формы, мебель из качественного дерева, сложные архитектурные элементы, в виде лепнины, колонн и др., А также сдержанные пастельные оттенки в отделке.
Фотогалерея
Квартира 40 кв. М., Несмотря на столь относительно небольшую метражу, отличается довольно практичным, комфортным и эргономичным дизайном, наилучшим образом отвечающим требованиям проживания.
Не каждый может позволить себе купить большую квартиру.Многие довольствуются небольшими площадями. Поэтому однокомнатная квартира 40 кв. — довольно распространенный вид жилья, в котором легко уживается полноценная семья из трех человек.
Основная проблема малогабаритного жилого помещения — необходимость рациональной организации полезного пространства. Однако, несмотря на небольшие размеры, квартира-студия составляет 40 кв. можно так организовать, после чего вы получите удобное функциональное пространство со своим неповторимым стилем и внешним видом.
Начало работ по обустройству однушки
Начало ремонта квартиры 40 кв.м. Начать следует с разработки проекта. Если нет возможности обратиться к профессиональным дизайнерам-дизайнерам, то простых карандашных набросков на бумажном холсте будет достаточно, чтобы сделать приблизительные подсчеты и удобно спланировать полезное пространство.
При составлении проекта обратите внимание на следующие моменты:
- бюджет, в который уже включены средства на непредвиденные расходы;
- конструктивных особенностей помещения, включая все ниши, выступы, балки и т. Д.;
- количество домохозяйств, постоянно проживающих на данной территории с учетом своих потребностей и желаний;
- выбранная стилистическая концепция;
- расположение основных мебельных групп и аксессуаров.
Техника зонирования
Так как площадь 40 квадратов нельзя назвать очень большой, и люди, живущие на них, хотят чувствовать себя комфортно, при организации планировки квартиры 40 квадратных метров.м. рекомендуется использовать приемы зонирования.
Построение перегородки для визуального и практического разграничения функциональных зон. Можно построить конструкцию из гипсокартона, которая перекрывала бы площадь не полностью, а всего на 40 процентов.
Полки с открытыми сквозными секциями. На этих полках с легкостью поместятся любимые книги, красивые сувениры и другие аксессуары.
А купив пластиковые ящики, имитирующие ящики из ротанга, на таких стеллажах можно хранить даже комплекты белья или одежду.При этом в общем виде такая мебельная конструкция не будет смотреться громоздко, а комната не будет загромождена.
Подиум — это не только инструмент зонирования, но и очень функциональное решение. Такая конструкция очень четко разделяет пространство, а в сочетании с занавесками на ней дает возможность скрыть поставленную кровать от посторонних глаз.
С конструктивной точки зрения подиум хорош тем, что площадь помещения используется как полноценная вместительная система хранения вещей.
Стилистика маленькой комнаты
Простой принцип дизайна квартиры 40 кв.м — использование светлых тонов. Именно исходя из этого условия выбираются стили помещения, среди которых наиболее подходящими являются:
Классицизм с его правильными формами и симметрией, здесь четко соблюдаются пропорции. Для отделки стеновых поверхностей подойдут нежные полотна из обоев; на пол лучше постелить паркет или ламинат.
Минималистские направления хороши своими прямыми углами и простыми формами.Эти фасоны исключают вычурность, палитра тонов светлая, с включением ярких деталей.
Стилизация «Лофт» с индустриальным характером пригодится для небольшого жилого помещения.
Подбор мебельных групп
Выбирая мебельное оборудование для маленькой однушки, следует понимать, что стандартные мебельные группы здесь просто неуместны. Наиболее подходящие модели станут модульными комбинациями, которые можно будет выбрать по размеру, а оборудование будет соответствовать всем требованиям.
Модули хороши тем, что все элементы выполнены в едином стиле, благодаря чему вся концепция дизайна будет единым целым.
Еще одна очень вместительная и полезная вещь в интерьере 40-метровой однушки, это встроенный шкаф от пола до потолка.
Удобнее всего использовать на небольших площадях мебель-трансформер. Среди таких предметов — стол раскладного типа, превращающийся в систему хранения вещей, кровать, которую можно использовать как диван днем, или модель, которую днем убирают в шкаф, как на фото квартиры 40 кв.м., пр.
Что касается размещения, то в спальной зоне кровать лучше располагать возле оконного проема. При этом обычные шторы желательно заменить на короткие легкие шторы и жалюзи.
При оборудовании кухни предпочтение следует отдавать многофункциональным гарнитурам из светлых глянцевых материалов. Отраженный от таких поверхностей свет наполнит пространство воздухом, создав иллюзию просторного помещения.
Мягкий диван и округлый обеденный стол можно разместить в углу кухонной зоны.
Для разделения кухонной и гостевой зоны можно использовать компактную деревянную перегородку, которая послужит установкой для телевизионного оборудования.
Разместив небольшой мягкий диван и компактный столик в гостевой зоне, можно организовать уютное пространство для приема гостей и приятного времяпровождения.
Динамичность и индивидуальность помогут внести в интерьерную композицию яркие аксессуары, аквариумы, изящные полотна картин, подходящие к стилю интерьера.
Фото квартиры 40 кв.
000
0000000005000
Иметь собственный дом, свой уголок, куда можно прийти после работы и отдохнуть — мечта любого современного человека.Но, к сожалению, не все могут позволить себе купить квартиру. Последней тенденцией в строительстве стали небольшие квартиры-студии, которые намного дешевле обычных квартир и отлично подходят для молодоженов или одиноких людей.
Характеристики:
Красивое название Студия получила небольшие квартиры, в которых всего одна комната разной площади. Часто гостиная, кухня, столовая и рабочий кабинет должны располагаться на площади 40 квадратных метров.Дизайн квартиры-студии 40 кв м может быть совершенно разным. На первый взгляд кажется, что такая площадь не такая уж и маленькая. Но, как правило, люди хотят разместить в своей маленькой квартире как можно больше зон.
При правильной планировке пространства квартира-студия может быть довольно уютной и просторной. Но каким бы ни был дизайн квартиры, и сколько бы зон в ней ни располагалось, кухня должна присутствовать в обязательном порядке, и ей следует уделить особое место.
Основные принципы дизайна квартиры-студии площадью 40 кв.м. отсутствие громоздких элементов декора, крупногабаритных картин, объемных ковров и тяжелых штор.
Популярные стили
Лофт
Это направление в дизайне квартир имеет английские корни. Именно английские рабочие начали использовать чердак как жилую зону. В их воображаемых жилищах было минимум мебели и декора, стены были отделаны кирпичом, а полы были деревянными. Стиль лофт быстро завоевал популярность среди людей разных слоев общества.
Этот стиль идеально подходит для дизайна однокомнатной квартиры площадью 40 кв.м. К тому же в квартире в этом стиле царит необыкновенная атмосфера. В основном лофт отдают предпочтение одиноким молодым людям, не терпящим ярких обоев и ярких штор. Протекшие провода и открытые вентиляционные каналы характерны для их квартиры. Если в квартире на стенах обои, то это кирпичный принт или обычные серые тона.
Современность
Современное значит современное.Квартира-студия в стиле модерн имеет множество вариантов дизайна.
Самым главным правилом является наличие современных элементов декора и современной техники. Для этого стиля характерно наличие встроенной техники, имеющей дистанционное управление.
Цветовая гамма интерьера современной квартиры-студии в основном выполнена в мягких пастельных тонах. Благородный бежевый, светло-персиковый и коричневый сделают вашу квартиру необычайно уютной и комфортной. Дополните пространство модными фигурками, небольшими картинами и мягким ковриком, чтобы сделать его еще уютнее.
фото
Прованс
Каждый современный человек знает, что такое Прованс. Маленькая французская провинция стала отдельным пунктом назначения в разных областях. Дизайн квартир здесь не исключение. Квартира-студия, оформленная в этом стиле, очень похожа на небольшой деревенский домик. Если стиль лофт больше подходит одинокому молодому человеку, то прованс создан специально для мечтательных одиноких девушек.
Для этого стиля характерны цветочные принты, короткие цветные шторы в несколько ярусов, скромные розовые обои.
Отличительной чертой этого направления в дизайне являются небольшие предметы мебели, размещенные по углам. Это могут быть табуреты, прикроватные тумбочки или небольшие туалетные столики. Квартиру в стиле прованс можно украсить различными картинами в деревенской тематике; вместо пушистого ковра на полу могут лежать вязаные или плетеные самодельные коврики.
фото
Высокие технологии
Дизайн квартиры в стиле хай-тек имеет совершенно противоположные черты, чем стиль прованс.Квартира в стиле хай-тек — идеальный вариант для серьезных консервативных людей, любящих порядок и ясность во всем. Если посмотреть на интерьер квартиры сверху, то он напоминает рисунок по линейке, без малейших округлостей и погрешностей.
Для этого стиля характерно наличие холодных металлических оттенков и отсутствие каких-либо декоративных элементов. Гардины и гардины совершенно не подходят для такого интерьера. Если не хотите оставлять окна голыми, то отдавайте предпочтение жалюзи разного типа.Чтобы как-то разбавить строгую обстановку, повесьте на стену небольшую картину с ярким изображением. Но рисунок должен быть только один, иначе стиль будет нарушен.
Fusion
Этот стиль довольно часто используется в интерьере. Он идеален для однокомнатных квартир-студий, так как позволяет зонировать пространство, используя сочетание нескольких стилей. Многие выбирают это направление, так как не требует соблюдения каких-либо особых правил. Вы сами легко можете стать дизайнером своего дома.
Конечно, во всем должна быть мера, иначе ваша квартира будет просто безвкусным пространством, не подчиняющимся никакому стилю.
Стиль фьюжн не имеет рамок и границ, каждый хозяин однокомнатной квартиры может придумать что-то новое, добавить свежие идеи.
Варианты зонирования
Двери раздвижные
Раздвижные двери — настоящая находка в интерьере, особенно для квартир-студий. Какой бы уютной ни была квартира-студия, хочется, чтобы в ней было несколько закрытых друг от друга участков.Раздвижные двери идеально подходят для разделения кухни и гостиной. Двери совершенно не украдут места за счет того, что установлены на специальных направляющих и свободно перемещаются из стороны в сторону. Материал дверей может быть разным, от натурального дерева до тонкого прозрачного пластика.
Шкафы
Шкафыуже давно используются в интерьере для зонирования пространства. Это отличный вариант, если вы хотите разделить спальню и гостиную. На заказ возможно изготовление абсолютно любой модели шкафа.Здесь хорошо подойдет двухсторонний шкаф с дверцами спереди и сзади.
Шкаф купе сэкономит вам еще больше места благодаря раздвижным дверям … У вас также есть возможность установить модель встроенного шкафа, которая будет повторять высоту вашей комнаты, а с одной стороны будет примыкать к стене , которая является его стеной.
Перегородки
Перегородки как вариант зонирования комнаты тоже никто не отменял. Здесь речь не идет о глухой стене, а предлагается разместить перегородку из гипсокартона, которая хорошо обработана.Благодаря своей легкости гипсокартон можно использовать для устройства арочных конструкций и перегородок любой формы. Модными считаются перегородки с полками и подсветкой. Квартира по-прежнему будет представлять собой единое пространство, немного разделенное на зоны.
Многоярусные конструкции
Этот вид зонирования однокомнатной квартиры считается самым сложным из всех вышеперечисленных, на осуществление которого может потребоваться гораздо больше времени и средств. Разделение зон с помощью многоярусных конструкций — это установка верхнего яруса, на котором будет располагаться спальня.Таким образом вы полностью освободите основное пространство и обеспечите себе полноценное спальное место с удобной кроватью.
Зонирование уровней может быть не таким глобальным. Также можно спроектировать подиум, на котором будет располагаться письменный стол, обеспечив себе рабочее место.
Зоны
Прихожая
Как говорят многие владельцы однокомнатных квартир, это такой тип жилья, когда от лифта попадаешь прямо в спальное место. Чтобы этого не произошло, нужно оставить немного места для прихожей.Сделать это можно с помощью небольшого выступа над полом. Своеобразный подиум разграничит площадь прихожей и жилого помещения. В конструкцию также может входить перегородка, на которую можно установить крючки для хранения одежды. Таким образом, у вас будет небольшая прихожая, которая будет отдельной частью квартиры.
Как спрятать кровать в гостиной: 46-метровая однушка блогера
Хозяйка этой однушки решила не идти по проторенным дорожкам и вместо раскладного дивана поставила двуспальную кровать прямо в гостиной Блогер из Сан-Франциско Лорен Мизрахи пишет в своем онлайн-дневнике Live Happy Inspired о счастье повседневной жизни, которое может можно успешно найти, созерцая красоту материального мира и одновременно черпая вдохновение в утренней чашке чая.Обставить квартиру-студию и так — задача не из легких. Когда его надо разместить на 46 кв. м, и несколько дорогих сердцу вещиц, задача на самом деле кажется малопригодной. Хозяйка съемной квартиры решила пойти с противоположной стороны и разбила пространство на зону не светом и креативными цветовыми решениями, а самыми любимыми вещами: текстилем, комнатными растениями и множеством уютных мелочей, собранных на барахолках. Спальня блогер резонно решила не выделять декор, а, наоборот, «слиться» с белой стеной из светлого текстиля.Таким образом, войдя в гостиную, не сразу замечаешь двуспальную кровать у окна. Сама гостиная отличается однотонным покрывалом, подушками и «шкурой зебры» на полу. Центром композиции и звездой всего помещения заслуженно выбран старинный сундук, одновременно выполняющий роль журнального столика, системы хранения вещей и главного составителя домашнего уюта этой квартиры. По мнению хозяйки, лучший способ оживить съемную квартиру, в которой, к сожалению, не всегда что-то можно кардинально исправить, — это максимально использовать цветы и свечи.В вазонах и горшках, под вытяжками и на полках растение добавит ощущения свежести, чистоты и цвета даже самой скучной и тесной квартире. Свечи также могут стать отличной альтернативой многоуровневому освещению, если вы выделите для них нужные зоны (а при желании можете наполнить комнату любимым ароматом). http://www.apartmenttherapy.com/
Комментарии
Комментарии
все самое лучшее себе
Часто думают: «Если бы у меня было побольше места, потолки повыше, а дом кирпичный, тогда бы я сделал лучший ремонт.Но не бойтесь небольших площадей. Любую квартиру можно превратить в красивый и со вкусом оформленный дом. Представляем удивительный дизайн двухкомнатной квартиры с интересными решениями для экономии места.
Это синтез современного дизайна с этническими элементами. Это придает особый шарм и показывает, как с общей площадью всего 50 квадратных метров можно оптимально использовать каждый квадратный метр пространства и получить удобные, функциональные комнаты.
Часто серьезный перепланировку сделать просто невозможно.Обычно этому препятствуют две причины: существенные материальные затраты или особенности дизайна квартиры. Но на эти проблемы можно не обращать внимания. Например, можно увеличить гостиную, добавив лоджию. Обычно трудностей немного. Самое главное будет — хорошо утеплить пространство, за счет которого вы расширили комнату.
Правильно расставленная мебель и предметы интерьера помогут сэкономить необходимое пространство. Например, открытые полки от потолка до пола помогут вам функционировать и экономно организовать жилое пространство.А использование в интерьере светлых оттенков, зеркал и прозрачных элементов сделает комнату просторнее.
Освещение также играет важную роль. С помощью правильно подобранного света можно смоделировать пространство комнаты, выделив разные части, стойки.
Обустройство кухни
Особое внимание было уделено синтезу гостиной и кухни в дизайне двухкомнатной квартиры. Кухня осталась отдельной комнатой с выходом в гостиную, где расположены обеденная зона и телевизор.
Все-таки самое главное — это разгрузка пространства за счет правильного хранения вещей. Сделать это можно двумя способами: избавиться от всего лишнего или правильно использовать каждый квадратный метр комнаты.
В спальне интересно решить вопрос с мебелью. Часть комнаты, отделенную перегородкой с дверью, оборудовали гардеробной. Это позволило освободить зону спальни от ненужной мебели и визуально увеличить пространство.
А в прихожей стоит шкаф-купе с зеркальными фасадами, которые добавляют света и объема небольшому пространству.
Двухкомнатные квартиры небольшой общей площади встречаются в основном в домах советской постройки. Вопрос, как лучше спроектировать двухкомнатную квартиру площадью 50 кв. м (фото и дальше будут демонстрировать множество примеров) по-прежнему актуален, поскольку в «старом стоке» такая квадратура была довольно распространена. Имея определенные знания и приложив максимум фантазии, терпения и усидчивости, вы сможете сделать совершенно уникальный дизайн, который ежедневно будет радовать вашу семью красотой и удобством.В этой статье будут даны некоторые общие рекомендации по подготовке к дизайну и удачному оформлению отдельных комнат квартиры.
Продумывая тот или иной проект, стоит задуматься, кто и дальше будет проживать в комнате, чтобы правильно распределить функциональное назначение той или иной комнаты. Например, если в семье есть ребенок, необходимо наличие детской комнаты, если один взрослый, вполне возможно объединить кухню с гостиной, а вторая комната будет выполнять роль спальни.
Перед планировкой дизайн двухкомнатной квартиры 50 кв. м необходимо детально изучить: какие стены несущие, как их запрещено демонтировать, наличие ниш, выступов, расположение окон, которые можно использовать в положительном ключе. Важно учитывать интересы каждого члена семьи, чтобы правильно обозначить необходимые функциональные зоны.
Определившись с этими основными моментами, можно смело переходить к выбору стиля, на котором, собственно, и будет основан весь проект.Площадь 50 квадратных метров, на которой базируется двухкомнатная квартира, довольно мала, и предпочтение отдается ярким цветам, характерным для классического стиля. Они зрительно расширят пространство.
Современные стили хай-тек, лофт, минимализм, предпочитающие монохромные поверхности, геометрические формы и необычные световые решения (в том числе многоуровневые), также будут подходящим выбором для небольшой площади.
Перед тем, как приступить к ремонту, обратите внимание на свои финансовые возможности — от этого будет зависеть выбор отделочных материалов, мебели, текстиля и элементов декора, соответствующих тому или иному стилю.
Коридор в дизайне трехкомнатной квартиры 50 кв. м: фото готовых дизайн-проектов
В современных проектах часто можно встретить планировку, где отсутствует отдельная комната коридора, а порог входной двери ведет прямо в просторную гостиную. Если будет коридор, то в маленькой двухкомнатной квартире он не будет отличаться большим пространством. Поэтому необходимо на визуальном уровне его увеличивать, чтобы пространство было более заметным.На фото вы можете подробно узнать, как правильно спроектировать дизайн интерьера двухкомнатной квартиры 50 кв.м. с небольшой прихожей, позволяет значительно расширить площадь по визуальному восприятию.
Выбирая материалы для отделки стен и потолка коридора, стоит обратить внимание на светлые тона (белый, бежевый, кремовый, песочный и др.), Так как темные могут сделать маленькую комнату мрачной. Если в отделочных материалах предусмотрены выкройки, лучше, чтобы они были небольшого размера. «Поднимите» высоту помещения, используя подвесной потолок, оборудованный скрытой подсветкой.
Мебель в маленьком коридоре не должна быть заметна, поэтому цветовое сочетание со стенами станет отличным решением. Можно дополнить интерьер шкафом-купе с зеркальной дверью, ведь известно, что зеркало способно увеличить пространство. Помимо ярких цветов возможно также наличие ярких фрагментов. Здесь важно понимать, что цветовая палитра должна соответствовать дизайну остальных комнат, чтобы создать эффект единого пространства.На фото представлены примеры удачных решений при оформлении маленького коридора в разных стилях.
Дизайн интерьера двухкомнатной квартиры 50 кв.м .: оформляем кухонное пространство
В маленькой двухкомнатной квартире и кухне соответственно будут небольшие габариты. Для того чтобы расширить пространство, примените метод совмещения его с гостиной, убрав перегородки. Если стена между кухней и комнатой является частью несущей конструкции, такие работы запрещены.Это тоже довольно неудобно для семьи, так как после перепланировки будет одна комната для спальни.
Для достижения эффекта простора на кухне используются те же приемы, что и при оформлении коридора. Поэтому выбираем светлые тона и продумываем освещение. Немалое внимание здесь стоит уделить мебели. Поскольку площадь небольшая, необходимо заполнять ее только самыми необходимыми функциональными элементами.
Естественно, должна быть плита, мойка, холодильник, разделочный стол, шкафы для посуды и различных продуктов.Обеденный стол лучше брать небольших размеров. В этом случае желательно, чтобы фасады кухонного гарнитура были светлыми и имели глянцевую или зеркальную структуру. При обустройстве небольшой кухонной комнаты, входящей в дизайн интерьера двухкомнатной квартиры 50 кв.м., не стоит увлекаться декоративными элементами, чтобы не загромождать и без того небольшое пространство. Для окон лучшим решением будет легкий полупрозрачный тюль, чтобы максимально пропускать дневной свет.
Обустройство санузла в квартире 50 кв.м
Продумывает дизайн двухкомнатной квартиры 50 кв. м, обратите внимание на обустройство санузла. В малогабаритных квартирах санузел часто совмещают в одну комнату с небольшими габаритами. Лучшим решением будет отказаться от ванны и установить душевую кабину, что значительно сэкономит место. Кроме того, в наше время в продаже есть огромный выбор моделей, которые имеют оригинальный дизайн и множество функций (гидромассаж, тропический дождь, эффект водопада и другие).
На освободившееся место можно полностью разместить стиральную машину, спрятав ее, например, в шкафу — получится аккуратный функциональный столик. Белая плитка используется как отделочный материал для маленькой ванной комнаты, а стену за унитазом можно украсить черным блоком плитки, создавая видимость бесконечного туннеля. Если плитка имеет геометрический рисунок, лучше расположить ее горизонтально.
Естественно, зеркала — атрибут любой ванной комнаты. Хорошим решением станет установка большого зеркала, которое помимо своего предназначения украсит интерьер ванной комнаты.Все эти приемы позволят максимально расширить пространство и сделать уборную светлой и уютной.
Дизайн комнат в общем дизайне двухкомнатной квартиры 50 кв.м.
Расположение комнат в дизайне квартиры 50 кв. м и их функциональное назначение определяется в зависимости от проживающей семьи. Если это молодая пара с детьми — одну комнату следует отвести под детскую. Если в семье нет детей, здесь возможны разные варианты.В основном одна из комнат (особенно если это КПП) отводится под гостиную, а вторая — под спальню. Рассмотрим несколько вариантов.
Дизайн интерьера гостиной двухкомнатной квартиры 50 кв.м.
При обустройстве гостиной следует уделить должное внимание мебели. Его не должно быть слишком много, стоит остановиться на самом необходимом предмете мебели. В нем обязательно должен быть диван, кресла или пуфы для комфортного отдыха, стол (желательно небольшой журнальный) и телевизор.
Если у вас есть балкон, вы можете организовать на нем кофейную зону, также оборудовав небольшой столик со стульями. Цвета стен и потолка для гостиной следует выбирать из светлой палитры, но можно добавить различные яркие элементы, чтобы комната не выглядела «скучной» и пустой (например, яркие подушки на диване или вставки на шторы).
На окна лучше вешать легкие прозрачные шторы. Это создаст вид на большое панорамное окно.Для большего комфорта можно накрыть диван пледом, а на пол положить небольшой коврик, добавить в интерьер комнатные растения и торшер.
Дизайн гостиной двухкомнатной квартиры 50 кв. м следует выдержать в едином стиле с остальными помещениями. Наличие декоративных орнаментов будет захламлять и без того небольшое пространство, все следует подбирать лаконично и функционально. Часто применяется метод совмещения гостиной с кухней с устранением перегородки, как показано на фото.В этом варианте интерьер разделен на зоны, но при этом остается совмещенным с помощью цветовых решений.
Детская в малогабаритной квартире
Детская комната — это комната, где все должно быть продумано до мелочей: от самых необходимых предметов мебели до полной сохранности окружающей мебели, выбора цветовой палитры и оформления окон. Часто дизайн детской бывает тематическим, что вызывает большой интерес у детей и облегчает работу взрослых по подбору необходимых элементов.
Лучше оформить комнату в спокойных тонах. Для этого подойдут оливковые, оранжевые, синие, зеленые и бежевые оттенки, а яркие акценты только дополнят интерьер. Хорошим выбором станут обои с изображением рамок из любимых мультфильмов или сказок.
Дизайн двухкомнатной квартиры 50 кв.м. Подразумевает, соответственно, небольшой метраж комнат. Следует отметить, что в детской должно быть достаточно места для игр. В маленьких комнатах часто помогает мебель-трансформер (например, кровать, складывающаяся в шкаф).Желательно, чтобы на полу был мягкий ковер, так как там в основном играют дети.
Делая детскую, очень важно прислушиваться к пожеланиям самого ребенка, учитывать его темперамент и предпочтения, чтобы потом малыш с удовольствием проводил время в своем уголке.
Дизайн двухкомнатной квартиры 50 кв. м: оформить спальню
Очень часто в квартирах с маленьким двором одна комната служит несколькими.Например: гостиная-спальня, спальня-шкаф и другие. В любом случае необходимо постараться использовать как можно меньше места и при этом учесть все необходимые детали интерьера.
Современные стили, пользующиеся большой популярностью (минимализм, модерн, хай-тек), хорошо подходят для организации небольших спален. Они предполагают наличие аккуратной мебели без дополнительного декора, использование светлых тонов при отделке стен и потолка. Пол также выполнен в сдержанных тонах: это может быть паркет, ламинат или ковролин.
Особую уютную комнату для отдыха придадут настенные бра с молочно-белыми оттенками. Любители роскоши могут оформить спальню в классическом стиле с оттенками персикового, розового, оливкового, светло-сиреневого в сочетании с золотисто-серебряными узорами, лепниной и хрустальными люстрами.
Поскольку мы рассматриваем дизайн небольшой однокомнатной квартиры площадью 50 кв.м, в спальне можно разместить и гардеробную, которая, например, будет гардеробной. Поскольку производители этого вида мебели предлагают достаточно широкий ассортимент отделочных материалов для отделки фасадов, можно выбрать тот вариант, который наиболее гармонирует с выбранным стилем.Для современных помещений подойдет шкаф-купе с зеркальными дверцами, для стиля прованс — с жалюзи, а классика отдает предпочтение изящным узорам.
В заключение хочу сказать, что если обратить внимание на такие детали, как свет, цвет, мебель и общий стиль, даже самая маленькая квартира может стать уютным, комфортным и красивым.
Дизайн двухкомнатной квартиры 50 кв. м: создаем пространство и комфорт обновлено: 22 октября 2017 г. автор: Киев Ирина
Теплое дерево в черно-белом интерьере — это мы уже видели.А вот как внедрить технику практически «в никуда» и оформить эффектную ванную комнату с помощью цвета — это однозначно стоит изучить. Мы рассматриваем проект Натальи Акимовой.
На фото:
Интерьер квартиры 50 кв. М изначально предполагает компромисс. Обычно в поисках места приносят в жертву полноценную спальную зону, совмещая ее с гостиной. Хозяин этой квартиры решил пойти наоборот.
Информация о квартире: однокомнатная квартира 50 кв.м.
О владельцах: Молодой бизнесмен и его девушка.
Пожелания клиентов: без жилого помещения.
Хозяйка небольшой однокомнатной квартиры поставила дизайнеру Наталье Акимовой необычное условие — без жилой площади: в квартире должно быть комфортно жить (спать и есть), а за ее пределами удобнее встречаться с друзьями. Новая планировка квартиры 50 кв.м решила эту проблему. Дизайнер разделил комнату на две равные части: спальню и кухню-столовую, придумал большую прозрачную гардеробную и оформил интерьер в лаконичном скандинавском стиле.Однако это еще не все сюрпризы.
Интересные идеи уже встречаются в прихожей: встроенный черный шкаф одновременно работает как плечики для верхней одежды — не нужно рыться при выборе подходящей куртки. Стеклянный уголок, закрывающий прихожую — выступающая часть шкафа в спальне.
Вместо зеркала в коридоре — грифеля, можно написать послание в будущее: «Не забудьте взять паспорт». Умные решения не обязательно являются сложными и дорогими — простой пластиковый мешок с песком от IKEA помогает содержать обувь в порядке и отлично вписывается в дизайн.Обои Borastapeter от Bor из коллекции Hanna Werning делают сухой функциональный дизайн Bor более ярким и жизнерадостным.
Кухня-столовая выполнена в объемном черно-белом цвете. Белый цвет зрительно увеличивает пространство, а черный придает помещению ультрамодный «космический» вид и позволяет максимально незаметно сделать систему хранения, прикрепленную к стене. Хозяева много путешествуют по миру, отсюда и соответствующий декор — карта мира и часы на разных поясах. Стена с картой покрыта краской с металлической пылью — на ней будут держаться привезенные из поездок магнитики и открытки.
Планировка квартиры 50 кв.м имеет ряд интересных особенностей. Например, шкафы, колонны в спальне — «подарок» кухни, это оборотная сторона встроенной мебели и техники. Но такой каркас кровати делает зону сна более комфортной, образуя своеобразную нишу.
В самой нише, над изголовьем, дизайнер тоже не промотал место зря, а организовал практичные полочки. Черный цвет придает глубину всей конструкции и служит элегантным фоном для аксессуаров и мелочей.
Изюминка спальни — большая стеклянная гардеробная. В первую очередь, это хороший повод навести порядок в гардеробе. Во-вторых, возможность выбирать одежду на день, не вставая с постели. Обои на задней стенке шкафа такие же, как и в прихожей. Они привносят живость в интерьер и объединяют зоны.
Модные детали в комнате — большое зеркало на полу, фоторамки разного размера и формы на стене, элегантное дизайнерское кресло в углу.Легкий тюль вместо вычурных штор — признак минималистичного скандинавского интерьера.
Контраст черного и белого не только сам по себе выразителен, но и позволяет расставлять различные визуальные приемы, играть с объемом и глубиной восприятия. Здесь, например, эксплуатируются космические мотивы. Обратите внимание, эта дизайнерская квартира 50 кв. М — солидный интерьер, но каждая зона не похожа на другую.
Два круглых зеркала без рамы создают сюрреалистическую игру цветов. Форма круга повторяется в сантехнике и декоре.
Проект — участник конкурса «Лучший 3D интерьер однокомнатной квартиры» на сайте pinwin.ru. Ссылка на страницу проекта: http://www.pinwin.ru/konkurs.php?kact=2&knid=27&rbid=4128
Комментарий в ФБ Комментарий в ВК
Времена идут, а планировка наших жилищ меняется. Нельзя сказать, что они стали радикально просторнее, однако стали появляться альтернативные варианты, в этом нам поможет обычная однокомнатная, двухкомнатная и европейская планировка.Eurogirls быстро полюбились нашим соотечественникам за доступные цены.
До сих пор мы не догадывались, что можно купить более просторную квартиру по цене однокомнатной. Однако в настоящее время далеко не все девелоперы ориентируются на потребности молодых семей, живущих с детьми. А ведь именно для этой части населения евросекция подходит больше всего. Планировка, расположение, дизайн, фото квартиры будут представлены в данной публикации.
Несколько слов для ознакомления
Итак, что это, европейская раскладка? В Европе, в отличие от России, такие квартиры не редкость.В основном они предназначены для холостяков или одиноких самостоятельных женщин, не обремененных детьми. Наши молодые родители быстро поняли, что в такой комнате можно жить с ребенком, а то и с двумя. Планировка евровагонки в корне отличается от общепринятых стандартов.
Небольшая площадь (не более 40 квадратных метров) не мешает жилью быть достаточно функциональной. Можно сказать, что все продумано до мелочей, и каждый квадратный сантиметр пространства играет на руку жильцам.Именно поэтому такая раскладка полюбилась россиянам. Кухня обычно служит гостиной. К тому же эта зона умело сочетается с прихожей. Так что мы отходим от привычных стереотипов принимать гостей в спальню, и грамотно используем львиную долю нежилого пространства прихожей.
Достоинства и недостатки
Как видите, львиная доля площади в таких квартирах отводится под прихожую. Все эти зоны в сочетании друг с другом создают иллюзию свободы и отражают современные тенденции.Однако в этой компоновке есть определенные недостатки. Если в стандартных хрущевских и брежневских квартирах самая маленькая комната непременно отводилась под кухню, то планировка евростула означает, что самой маленькой по размерам комнатой будет спальня.
Помните об этом, если вы планируете купить квартиру указанного типа. Вам нужно будет привыкнуть к мысли, что площадь крохотной спальни не будет превышать 12 квадратных метров. И это в лучшем случае. Поэтому дизайн этого помещения не блещет оригинальными идеями.Ведь на самом деле, кроме кровати и тумбочки со стулом, там ничего не помещается. Также следует отметить, что он занимает от четырех до семи квадратных метров.
Без оконного проема
Планировка европвушек часто подразумевает отсутствие оконного проема на кухне. Это обстоятельство является большим недостатком, если в квартире нет мощной вытяжки. В противном случае все запахи от готовки будут серьезно беспокоить жителей. В некоторых случаях окно на кухне все же есть.Поэтому дизайнеры советуют установить между зоной кухни и гостиной прозрачную перегородку.
Дизайн-проект евроввушки: как лучше расставить мебель
Мы говорили о том, что в спальне квартиры европейской планировки негде разгуляться. Но в совместном пространстве, отведенном под кухню и гостиную, нужно правильно расставить мебель. Сюда легко войдет домашний кинотеатр и даже детская игровая площадка. Для гостей вместо кресел можно установить большой вместительный диван.Если вы готовите ужин для друзей, в это время они смогут посмотреть художественный фильм и выпить чашечку ароматного кофе. Не забудьте приобрести для этих целей невысокий круглый стол.
В этой публикации мы рассмотрим плюсы и минусы компоновки евролитей, а также дадим ценные советы нашим читателям. Дизайнеры рекомендуют установить напротив детскую игровую зону. Не помешает минимальная детская мебель и мягкий ковер на полу. Если ваша семья часто принимает гостей, подумайте об этом.Вы сэкономите больше места. Чтобы все зоны удачно сочетались между собой, в дизайне интерьера придется прибегнуть к минимализму.
Обустройство гостиной-кухни
Такая квартира просто находка для одиноких молодых людей и пар, любящих шумные вечеринки. Главное, чтобы соседи потом не жаловались. Маленькая семья может прибегнуть к еще более нестандартному решению оформления зоны гостиной-кухни и отказаться от традиционного громоздкого обеденного стола.В этом случае можно рассмотреть вариант с многофункциональной барной стойкой со сдвижным верхом. Молодые люди оценят все прелести такой планировки, особенно если барная стойка сама отделяет зону готовки от зоны отдыха.
В нашей сегодняшней публикации рассказывается о дизайне интерьера квартиры евроввушки. Варианты фото предоставлены в качестве наглядной иллюстрации. Как можно оживить пространство, включающее и обеденную зону, и зону отдыха. Отличной идеей кажется размещение узкого аквариума.В этом случае стены в зоне отдыха уместно выкрасить в бирюзовый или синий цвет. Ну а для контраста стены на кухне можно покрасить в нежно-зеленый цвет.
Как мы уже отмечали, планировка евродверей часто подразумевает отсутствие окна в зоне гостиной-кухни. Если есть окно с выходом на балкон или лоджию, уместно будет полностью задрапировать всю стену занавеской. Такой прием поможет зрительно увеличить пространство.Можно пойти на хитрость, применив драпировку в цвет стен и в том случае, если оконный проем отсутствует. Импровизированный камин в центре одной из стен улучшит атмосферу дружеского чаепития.
Обстановка спальни
Планы Eurosplash включают крошечную спальню, в которой может поместиться только негабаритный шкаф-купе и обычная двуспальная кровать. Но с точки зрения стиля оформления не могло быть никаких ограничений, если бы не ограниченная используемая площадь. Конечно, если очень хочется, можно создать оазис посреди минимализма и оформить спальню, например, в английском стиле.Однако специалисты советуют не делать этого. Или, как альтернативу минимализму, можно оформить интерьер. Независимо от вашего решения, помните, что светлые пастельные тона визуально добавят комнате простора. Также ваша спальня не должна быть загромождена вещами, которыми вы не пользуетесь.
Заключение
В нашей сегодняшней публикации мы рассказали о том, что представляет собой феномен наших дней — миниатюрную евротвушку. Вкратце были представлены макет, фото, а также некоторые дизайнерские приемы.Собственники, приобретающие такую квартиру, не столкнутся с проблемами, если продумают каждый шаг в обустройстве.
Стильно меблированная квартира, расположенная в Подмосковье, принадлежит молодой девушке. Перед дизайнерами Geometrium стояла задача создать современный и функциональный интерьер без лишних украшений, которые обычно нравятся женщинам. Дизайн в натуральных тонах идеально подошел к характеру заказчика.
Гостиная в серых тонах
Дизайнеры постарались избежать использования темных тонов в дизайне этой квартиры и пропустить в комнату как можно больше естественного света.В однокомнатной квартире было достаточно места для будущих дружеских посиделок, отдыха и занятий спортом. В спальне в гостиной предпочел диван, оставив место для занятий йогой. Поскольку хозяйке, безусловно, требуется много места для хранения одежды и аксессуаров, было выделено место для всей гардеробной, ловко спрятанной за стеновыми панелями под деревом.
Интерьер со светлой мебелью
Напротив дивана — полки, спрятанные за минималистичным белым фасадом.За счет отсутствия излишеств вся комната выглядит аккуратно и опрятно: все лишнее можно спрятать от посторонних глаз за дверцами полок. С двух сторон от этой системы хранения расположены зеркальные двери, которые выполняют важные функции: во-первых, они визуально увеличивают пространство и наполняют комнату отраженным светом, а во-вторых, хозяйки необходимы для хобби. Зеркало у двери используется девушкой во время занятий йогой, а в зеркале у окна она раскрашена естественным светом.
Оформление коридора в квартире, фото
Дверь в ванную якобы часть стены.Такой дизайн создает впечатление абсолютно однородной поверхности.
Одна из раздвижных дверей шкафа в прихожей имеет нарочито зеркальную поверхность: находящаяся в этом месте дверь отражает свет, падающий с балкона, и делает комнату светлее.
Современный интерьер кухни-гостиной
Кухонный остров зонируется на кухню и гостиную. Интерьер оформлен таким образом, что хозяйка даже во время готовки может общаться с гостями, сидящими на диване.Центральным декоративным элементом пространства является карта мира, вырезанная из фанеры лазером. Заказчик много путешествует и собирается закрепить на карте фотографии, сделанные во время поездок. Стена за раковиной отделана грифельной краской: здесь вы можете написать свои любимые цитаты, свои мечты, нарисовать или просто сделать заметки.
Уютный балкончик, на котором можно утром выпить кофе
Серая плитка в ванную
По желанию заказчика дизайнеры разместили в ванной отдельно стоящую ванну.Пол и стены облицованы натуральным камнем различных оттенков серого — от светлого до антрацитового. Подушка из гравия антрацитового цвета под ванную комнату, выполненная в той же цветовой гамме, что и настенная 3D плитка, привлекает внимание. Здесь успешно применен прием с оптическим увеличением пространства с помощью зеркала.
Давайте сегодня разберемся, сколько может заработать визуализатор ⠀ Сразу хочу
Давайте сегодня разберемся, сколько может заработать визуализатор ❓
⠀
Сразу хочу подчеркнуть очевидные преимущества этой работы — вы сами регулируете свой график работы и сами можете определять свой ежемесячный доход.
⠀
✅ Обычно визуализатор, только что окончивший курс и еще не достигший скоростного заработка, начинается от 250 руб / квадратный метр.
⠀
То есть если он примет заказ — однокомнатную квартиру площадью 40 квадратных метров, он заработает от 10 000 рублей.
⠀
Трудно сказать точно о сроках выполнения такого заказа, так как все люди уникальны и работают с разной скоростью. В среднем начинающему рендереру может потребоваться от недели до двух поработать над моноблоком.
⠀
Если исходить из того, что начинающий визуализатор будет рад делать 2 однушки в месяц без гонок, то его заработок будет от 20000 руб / мес. Это при условии неполной занятости.
⠀
✅Примерно 2 месяца при регулярном выполнении заказов доход визуализатора увеличивается до 300-400 руб. / Кв.м. Скорость работы тоже увеличивается. И уже такая же однушка площадью 40 квадратных метров выходит от 12000 до 16000 рублей. А сроки его визуализации по техническому заданию от дизайнера сокращаются до недели.
⠀
То есть выполняя визуализацию четырех однокомнатных квартир в месяц, специалист зарабатывает от 48000 до 64000 рублей в месяц. Что уже значительно выше средней зарплаты в большинстве городов нашей страны. Но предел еще не в нашей области.
⠀
✅ Следующий уровень за метр от 450-500 руб. Такой ценник можно установить, когда у визуализатора есть постоянные клиенты и накопилось внушительное портфолио. В среднем это происходит через полгода-год.И даже при таком уровне цен визуализатор зарабатывает от 72000 до 100000 рублей в месяц.
⠀
Но это не предел. Денежный потолок визуализатора чаще всего упирается в его целеустремленность, желание зарабатывать и работать.
⠀
_________________
⠀
В качестве иллюстрации к посту мы использовали визуализацию кабинета Johnie Walker, сделанную нашим преподавателем Еленой по дизайн-проекту дизайнера Александры Некрасовой.
123
Однокомнатная внутренняя 30 кв.м
Комфортное и уютное жилье — мечта каждого человека.Владельцы однокомнатных квартир часто сталкиваются с проблемой, как лучше организовать пространство, чтобы на небольшой площади расположить все необходимые зоны. . Теперь возникает вопрос, можно ли разделить дизайн однокомнатной квартиры 30 кв.м на две зоны, фото интерьеров показывают, что это возможно. В этих случаях появляется идея зонирования комнаты.
Какова цель зонирования квартиры
Самый распространенный вид зонирования однокомнатной квартиры — разделение на гостиную или рабочую зону и спальню.Выделение в комнате отдельной спальной зоны просто необходимо, так как для качественного сна и отдыха необходимо создание определенных условий.
А вот какую функцию будет выполнять вторая часть комнаты, зависит от индивидуальных потребностей. Если квартиру часто посещают, то это гостиная, если хозяевам квартиры нужно работать дома, то это мини-офис.
Особое внимание стоит уделить освещению: для спального места подойдет мягкий приглушенный свет, но кабинет и гостиная должны быть хорошо освещены.На площади 30-35 кв.м гостиная должна быть максимально просторной, а вот в спальне пространство не так уж важно, главное уют, комфорт и функциональность.
В идеале в однокомнатной квартире площадью 20-30 кв.м должны быть предусмотрены следующие функциональные зоны:
- зона готовки и обеденная зона. Сейчас в моде квартиры-студии, в которых эта площадь совмещена с основной комнатой, что расширяет пространство;
- спальных мест;
- санузел;
- гостиная;
- при необходимости рабочая зона или зона для детей.
Как правило, площадь однокомнатной квартиры очень мала, поэтому дизайнеры советуют разделить ее на две комнаты, каждая из которых выполняет определенные функции.
В первой комнате есть кухня, столовая и гостиная, а во второй спальне есть место для работы.
Другой вариант, первая комната — это гостиная со спальным местом, а вторая кухня-столовая, в которой можно выделить рабочее пространство. Второй вариант удобнее, если один из членов семьи часто работает по ночам дома, а второму нужен сон.
Рассмотрим несколько вариантов, с помощью которых можно разделить однокомнатную квартиру на две зоны.
Предметы для совместного проживания в однокомнатной квартире
Дизайнеры выделяют разные варианты зонирования. Есть специальные перегородки или шторы. Очень часто таким объектом является стандартная мебель.
Использование мебели при выделении функциональных зон в квартире, пожалуй, самый простой и быстрый способ. Шкафы и стеллажи, расположенные вдоль стен, давно остались в прошлом.
Оригинальные и вместительные конструкции мебели, которые отделяют одну комнату от другой, не только экономят пространство, но и позволяют тратить время, деньги и драгоценное пространство помещения на возведение стен из гипсокартона.
Прекрасным и практичным способом отделить спальню от гостиной может стать шкаф, а барная стойка разделит кухню и гостиную.
При таком способе не обойтись без потолочного карниза. В классическом интерьере лучше использовать плотный балдахин, на востоке — многослойные струящиеся ткани, японский интерьер невозможно заменить без бамбуковых жалюзи, а средневековый — без изящных гобеленов.
При выборе такого способа зонирования следует учитывать два момента:
— можно дифференцировать пространство с помощью разных, но совместимых элементов — цветов и материалов;
— визуально увеличить квартиру, используя один отделочный материал по всем направлениям.
Только найдя компромисс между этими двумя правилами, можно создать гармоничный интерьер.
Красивый и уютный интерьер однокомнатной квартиры придумать не так просто.Ведь необходимо сделать комнату не только функциональной, но еще красивой и уютной. В этом случае важно максимально использовать свободное пространство. Используя разнообразные варианты дизайна, можно даже небольшую однокомнатную квартиру площадью 30 квадратных метров превратить в уютный и комфортный дом в современном стиле.
Для увеличения жилой площади в небольшой однокомнатной квартире целесообразно будет перепланировка. В этом случае важно соблюдать закон и согласовать проект перепланировки в соответствующих органах.
Кухня, совмещенная с гостиной, — пожалуй, самый распространенный вариант увеличения пространства в небольшой «однушке». Многим покажется, и они будут правы, что совмещать кухню с гостиной — не лучшая идея. Ведь все запахи, которые «живут» на кухне, точно так же поселяются в основной комнате. Однако в условиях строгой экономии места разумно остановить свой выбор на просторном и современном.
Если квартира оборудована балконом или лоджией, целесообразно объединить эти помещения с основной площадью квартиры.В этом случае следует позаботиться об утеплении лоджии или балкона. В зависимости от расположения лоджия может служить продолжением гостиной, отдельной спальни или столовой.
Зонирование пространства
Выделить зоны в современной квартире можно несколькими способами. Зонирование гостиной и кухни чаще всего выполняется с помощью дизайна потолка и пола. Для этого для отделки функциональных зон используется напольное покрытие разного цвета и фактуры.
Также зонирование между гостиной и кухней можно осуществить, используя разные уровни потолка и пола. Использование подиума и многоуровневых потолков позволяет разделить единое пространство на функциональные зоны.
Популярным инструментом зонирования пространства в однокомнатной квартире является мебель. или же диван поможет отделить зону кухни от гостиной.
Интересно и необычно смотрятся декоративные конструкции, выполняющие роль перегородок.Такие конструкции могут служить полочками для книг и всевозможных мелочей.
Выбор цвета
Ни для кого не секрет, что правильная цветовая гамма позволяет зрительно увеличить площадь дома. Такой прием как нельзя лучше подходит для однокомнатной квартиры площадью 30 кв.м. Для достижения такого эффекта в интерьере следует использовать светлые тона.
Потолок в светлых тонах визуально делает комнату просторнее и позволяет освежить интерьер.
Светлые стены, как и потолки, зрительно расширяют пространство и наполняют его светом. Теплые пастельные тона добавят уюта и создадут в квартире уютную атмосферу.
Современный стиль позволяет использовать шторы для оформления оконных проемов. Это могут быть классические шторы, японские, римские и т. Д. Цвет штор непременно должен гармонировать с цветом стен в квартире.
Обустройство современной однокомнатной квартиры
Раскладывающаяся мебель — настоящая находка для небольшой однокомнатной квартиры.Такая мебель отлично вписывается в современный интерьер и выглядит достаточно органично.
Шкаф-кровать — популярное решение, позволяющее сэкономить место в небольшой комнате. В разобранном виде конструкция представляет собой полноценную кровать, в собранном — компактный шкаф-купе.
Стол-трансформер — еще одна отличная идея для небольшой квартиры. Одним движением руки стол превращается из журнального в столовую и наоборот.
Раскладной диван может служить полноценным местом отдыха хозяев дома или внезапно приехавших гостей.Такой диван легко поместится в небольшой гостиной.
Встроенный шкаф позволяет избавиться от громоздких шкафов и комодов, которые загромождают пространство. Оборудованный зеркальными ставнями шкаф-купе визуально увеличивает пространство.
Модульный диван — удобное современное решение для малогабаритных квартир. Такой диван состоит из отдельных частей — модулей, которые можно укомплектовать друг другом.
Ванная и туалет
Чтобы немного увеличить полезную площадь дома, можно заменить громоздкую ванну на компактную душевую кабину.
Освободившееся место можно использовать для установки стиральной машины или унитаза.
Дизайн однокомнатной квартиры в современном стиле предполагает использование максимального свободного пространства. Для этого желательно провести перепланировку. Также важно не перегружать интерьер лишним декором и правильно подобрать цветовую гамму. Правильное зонирование пространства позволяет разделить функциональные зоны и сделать их максимально комфортными. Все это поможет создать уникальный интерьер однокомнатной квартиры площадью 30 кв.м.
Какой дизайн квартиры 30 кв. м. можно создать? Особенно если все счетчики в однушке? Если у вас небольшая квартира, если срочно стоит вопрос сделать жилье функциональным, комфортным, то нет другого выхода, кроме как стать профи в мире дизайна или заказать проект квартиры 30 кв.
Заказывая проект у профессионалов, специалисту необходимо передать все свои предпочтения, пожелания, ведь тогда в такой квартире нужно жить, и вам должно быть комфортно.
Кроме того, посмотрев дизайн, можно будет понять, нужна ли перепланировка квартиры 30 кв. для реализации проекта, или можно начать ремонт с того, что есть.
В стиле современного интерьера небольшая однушка в стиле хай-тек занимает важную нишу, ведь здесь гармонично сочетается комфорт с новаторством.
Лаконичные формы, современные технологии — все это позволяет создать эстетичное и практичное помещение, при этом стоимость ремонта квартиры составляет 30 кв.м. минимальный.
Отделка помещений
Очень маленькая квартира 30 м2, а потому важна правильная и продуманная отделка. Поверхность стен ровная.
Стены можно отделывать не только традиционными красками, но и новыми видами, например, стеклянными панно. Часто используют жидкие обои на флизелиновой основе, а также современную штукатурку, стеновые панели из пластика.
Зонирование производится перегородками из гипсокартона, закаленного стекла.Идеальное зонирование делают раздвижные ширмы. Привычные нам шторы не используются, потому что вместо них рулонные шторы.
Потолок белый, ровный, или натяжной, или гипсокартонный. На пол кладут виниловую плитку.
Цвет дизайна
Дизайн 1 комнатной квартиры 30 кв м. Лучше всего его выполнять в контрастных тонах, но при этом в паре преобладает светлый тон.
Если нужен фрагментарный акцент, используется броский тон, например, если интерьер однокомнатной квартиры 30 кв.м. выполнен в черно-белом цвете, допустимо использование пуфа-кресла, выполненного в ярко-лимонном оттенке.
Мебель
Мебель максимально функциональна, отлично дополняет интерьер студии 30 м2. Оптимально, объединив комнату с кухней, использовать шкаф-купе, в котором поместится все, чего не должно быть перед глазами, чтобы не загромождать пространство.
Кровать традиционная, массивный диван используется редко, в основном производится замена — раскладные аналоги — пуфик, трансформирующийся из односпальной в двуспальную кровать, очень просторную.
Также можно использовать так называемый гостевой диван, который в сложенном состоянии с комфортом вмещает до трех человек.
Стол, столешница которого сделана из закаленного стекла, пластиковые стулья не только функциональный элемент, но и отличное средство для зонирования.
Освещение
Стильный интерьер во многом зависит от правильного освещения. Кроме того, осветительные приборы используются как фрагменты декора, например, если над какой-то частью комнаты стоит мини-потолок, пространство можно визуально разделить на зоны, а если использовать лампы, встроенные в зеркальный потолок. , есть возможность получить дополнительное освещение.
Дизайн квартиры-студии 30 кв. м. благодаря правильному освещению он легко может иметь ряд визуальных эффектов.
Декор
Однокомнатная квартира 30 кв. М. требует продуманного выбора декора, ведь «мелочи» создают ощущение беспорядка.
Панно на стену — визуально придает высоту стенам, а подушки на диване могут подчеркнуть стиль мебели.
Новые формы, новые материалы ваз для цветов и фруктов создают в сочетании с техникой наиболее гармоничные композиции.
На специализированных дизайнерских сайтах очень большое количество фото дизайна квартиры 30 кв. м., а значит, каждый сможет нарисовать для себя какие-то идеи, доработать их, а затем воплотить в жизнь задуманное у себя дома.
Фото дизайна квартиры 30 кв.м
4
5000
0
0
0
0
0
Покупка маленькой малогабаритной квартиры вовсе не означает отказ от современного, функционального и просторного жилья, и это подтверждают отличные примеры трансформации квартир 30 кв.м., дизайн выполнен в современном стиле. Вдохновение можно и нужно искать в современных материалах, необычных формах и новаторских подходах к привычным вещам.
Дизайн однокомнатной квартиры 30 кв. м
О модном дизайне однокомнатной квартиры 30 кв.м . Об этом говорят давно. Несмотря на то, что новые проекты не предоставляют таких площадей для жизни современной городской семьи, все же есть хрущевки, для которых пресловутые «33 квадратных метра» стали золотым стандартом.Ну да ладно, эти метры составили бы пропорционально всю площадь, так что нет — кухня пристроена к маленькой комнате, настолько крохотной, что вдвоем сложно развернуться, а также узкий коридор и скромная ванная. Все это, в первую очередь, побуждает искать скрытые резервы, которые позволят сделать перепланировку в скромном жилище не хуже, чем в.
Во-первых, нужно оценить не только квадратуру комнаты, но и ее кубатуру, то есть понять, позволяют ли ваши потолки использовать прием вертикального разделения пространства.Когда речь идет об этой технике, первое, что приходит в голову, — это двухъярусные кровати. Но это далеко не все, что можно придумать в данном случае. На фото видно, как преображается визуально и функционально. 30 кв.м квартира м. Хрущевка Дизайн не слишком подходит для полноценного второго уровня, такую технику, как диван или кровать наверху, можно использовать при высоте потолка примерно 2,5-3 метра. Но можно сделать на кухне дополнительный антресоль, топчан вместо дивана или подиума, как прием зонирования, и интерьер приобретет модные, узнаваемые черты.
Отдельно стоит упомянуть, ведь при столь скромных метражах точно придется чем-то пожертвовать. Так что пусть эта кухня во имя других удобств станет вашей жертвой. Не пытайтесь втиснуть в него стандартные шкафы и уголки, которые предлагают производители кухонной мебели, это явно проигрышный вариант. Скорее, вам понадобится очень скромный набор, состоящий из рабочей поверхности, одной или двух полок, а также встроенной техники и варочной поверхности, благодаря современной технологии, позволяющей сэкономить такое пространство без потери качества.Обратите внимание, как этот прием реализован на фото-примерах, чаще всего кухня выполнена в той же гамме, что и остальное пространство, она не выделяется, сливается и очень уместно смотрится рядом с мягким диваном или двуспальной кроватью, как ни странно .
В некоторых случаях по разным причинам приходится отказаться от приема создания общего пространства, чтобы использовать все преимущества студии, мы предлагаем вам компромиссный вариант — перегородку. Он может быть стационарным или переносным, но должен полностью выполнять функцию физического разделения пространства.Ее можно оформить как бетонную или кирпичную стену (в популярных современных стилях, например, лофт или индустриальный), можно соорудить зеркальную или деревянную стену, которая также будет смотреться эффектно. Примеры дизайна квартиры 30 кв. фотография , которую вы видите выше, показывает, как такое физическое разделение может выглядеть в данных условиях и как использовать свет и материалы, чтобы сделать стену максимально удобной и привлекательной.
Дизайн однокомнатной квартиры 30 кв. м
И все же в умах владельцев хрущевок полностью доминирует современный, и именно такая планировка позволяет получить максимальное количество свободного места и правильно его использовать.Поэтому владельцы не боятся сложностей с дизайном перепланировки и с удовольствием разработают дизайн квартиры-студии 30 кв. м . Мы подготовили для вас три отличных примера такой конструкции, в которых вы сможете выполнить все основные рекомендации по грамотному распределению пространства.
В, фото которого представлено выше, используется множество зеркальных покрытий, которые отлично визуально расширяют пространство.Зеркала на дверцах шкафа-купе в коридоре, на раздвижной перегородке, разделяющей кухню и гостиную, большое зеркало расположено за изголовьем дивана-кровати, а вся мебель имеет глянцевую отделку.
Второй пример Дизайн квартиры-студии 30 кв. м., фото , которое будет следующим в нашем обзоре — настоящая ода белому. Но подобный шик дает не только свежий белый цвет текстиля, стен и мебели, но и необычная мебель — большой диван, сделанный по индивидуальным чертежам, занимающий всю жилую площадь комнаты.Дополнительные зоны должны быть функциональными, это показано на примере превращения небольшого балкона в рабочий кабинет.
И третий пример показывает удачное визуальное зонирование с помощью деревянных панелей, отделяющих кухню от спальной зоны. Дерево придает стенам необходимую глубину и очень гармонично взаимодействует со светлыми и белыми оттенками.
Владельцы однокомнатных квартир часто жалуются на крохотные размеры помещения, считая, что миниатюрное жилище не может быть удобным и красивым.Однако многочисленные проекты специалистов показывают, что дизайн однокомнатной квартиры составляет 30 кв. м. может быть очаровательным, просторным и комфортным. Одни скажут, что это невозможно, продолжая ютиться в шкафу, а другие воспользуются дизайнерскими уловками и, как по взмаху волшебной палочки, станут хозяевами королевских квадратных метров. Не верите, что однокомнатная квартира может быть роскошной? Представленные проекты докажут, что чудеса существуют!
Идеи по отделке однокомнатной квартиры 30 кв.м.
Пришедшая с Запада модная тенденция позволила владельцам «кукольных» однокомнатных квартир наслаждаться просторными жилищами с множеством функциональных зон. Имя этому чуду — квартиры-студии. Сносить стены — дело несложное. Залог успеха — серьезное отношение к технике зонирования, материалам отделки, цветовой гамме, мебели, аксессуарам, освещению.
Представленные проекты вдохновят и позволят превратить небольшую квартиру в особняк.
Фотопроект No.1. Белоснежная одержимость 30 кв. м
Крохотная однокомнатная квартира, размер которой всего 30 квадратных метров. м., после умелых манипуляций дизайнера балует эстетикой, эргономичностью и комфортом.
Цветовая гамма скромная, простая, но в то же время эффектная и легкая. Палитра состоит из дымчатых, снежных и графитовых тонов. Белый цвет наполняет квартиру свежестью, добавляет объема, а серые тона привносят мягкость, нежность и одновременно строгость.
Благодаря перепланировке, номер состоит из гостиной-спальни, кабинета, кухни, столовой и санузла. Однокомнатная квартира была разделена с помощью фальш-стены и нескольких типов полов.
Кухня с белым гарнитуром прекрасно сочетается с серой плиткой в тон стене, разделяющей гостиную. Место отдыха дружелюбное и уютное, так как невесомые белые шторы не препятствуют проникновению солнечных лучей в комнату, наполняя ее светом. Серый диван, царственно восседающий на пушистом грифельном коврике, манит лечь и отправиться в мир грез.Декоративные подушки в тон обивке дивана и ковролина привносят домашний уют, мягкость.
Сложно представить квартиру без рабочей зоны, однако в миниатюрной комнате крайне сложно выделить место даже для лишнего стула. В этом варианте дизайнеру удалось очень красиво разместить большой стол, удобный стул и полки. Завершающие нотки добавили живые растения, которые прекрасно разбавляют белоснежное однообразие, и оригинальные картины.
Благодаря гармоничному расположению сантехники и бытовой техники, бело-серой палитре, стеклянным дверцам кабины и широкому зеркалу ванная комната получилась привлекательной, удобной.
Однокомнатная квартира просторная, элегантная, уютная и невероятно просторная! Студия М2проект, Москва.
Украшение для интерьера. Фарфоровые фигурки котят
Популярная кухонная мебель
12 990 руб. 10 990 руб.
21 980 руб.6 590 руб.
16 980 руб. 6 590 руб.
31 650 руб. 18 990 руб.
9 100 руб. 7 260 руб.
13 320 руб. 8 990 руб.
Фотопроект №2. Утонченный и теплый дизайн
Дизайн, некогда крохотная квартира, захватывает дух. После работы специалистов интерьер поражает роскошью, величием, вместительностью и комфортом.
Палитра представлена белым, бежевым и серым оттенками с вкраплениями золотистого, шоколадного, красного и черного.Каждый тон придает шик, блеск и зрительно увеличивает пространство.
Планировка очень интересная и интригующая. Квартира разделена на функциональные зоны: огромная гостиная-спальня, столовая, кухня и санузел.
Дизайнер превратил балкон в изящную столовую, которую можно спрятать от посторонних глаз с помощью двери из матового стекла. Роскошные шторы, элегантный столик в подлокотниках очаровательных мягких стульев создают теплую, теплую атмосферу с романтическими нотками.
Гостиная впечатляет своими размерами и удивительным дизайном.Огромный диван, элегантное кресло, экстравагантные столики и оригинальный декор в совокупности создают удивительную композицию, поражающую практичностью, благородством и шармом.
Кухня отделена от зоны отдыха перегородкой с пристроенным мини-столиком и стульями. Готовя еду для гостей или домочадцев, можно сесть с чашечкой кофе и помечтать, а также уединиться с подругой для душевной беседы.
Дизайн однокомнатной квартиры завораживает и завораживает с первого взгляда! GM Interior Studio, Москва.
Бра в однокомнатной квартире
руб.
33 893 388 руб.
40 494048 руб.
41894 188 руб.
81498152 руб.
29 492 948 руб.
24 492 448 руб.
93499352 руб.
Классическая модульная мебель для гостиной
5320 руб. 4 190 руб.
22000 руб. 11 490 руб.
16 188 руб. 12 490 руб.
42490 руб. 15160 руб.
Стенка Алегро
12 210 руб. 11 090 руб.
Фотопроект №3. Превращение некомфортной однокомнатной квартиры в многофункциональную комнату
Дизайн квартиры-студии просторный, легкий и невесомый.
Цветовая палитра состоит из черного, белого, серого и бежевого оттенков. Светлые тона увеличивают пространство, наполняют светом, уютом, теплом, а темные добавляют зрелищности.
Превратив помещение в студию, можно было разделить жилище на зоны:
- кухня;
- гостиная;
- спальня;
- ванная.
Кухня отделена от гостиной стойкой и низко висящими светильниками. Место для сна представлено огромной кроватью, а зона отдыха — темным мягким диваном, журнальным столиком и необычным креслом, что делает комнату не только легкой и невесомой, но и уютной.А декор умело придает квартире домашний уют.
В помещении много древесных материалов, которые привносят атмосферу тепла и аромата величественного леса.
Ванная комната, несмотря на свои миниатюрные размеры, кажется большой и просторной. Светлая гамма добавляет объема, мозаика антрацитовой стены отвлекает от недостатков комнаты. А компактная мебель и сантехника не загромождают пространство.
Все предметы интерьера раскрывают и подчеркивают красоту дизайна, нежность и мягкость друг друга, благодаря чему квартира-студия получилась красивой, светлой и воздушной.АРТ-УГОЛЬ Дизайн, Новосибирск.
Шторы в однокомнатной квартире
18 648 руб. 3 170 руб.
7 448 руб. 2 184 руб.
9 373 руб. 2 631 руб.
4525 руб. 2430 руб.
7 448 руб. 2 184 руб.
44 397 руб. 2 483 руб.
11 949 руб. 3823 руб.
9 621 руб.3 078 руб.
32 896 руб. 2 631 руб.
Новая спальная мебель
15 610 руб. 11 980 руб.
27 260 руб. 13 450 руб.
Кровать Люсии (139х189)
4980 руб. 1990 руб.
Цветовая палитра состоит из белого, бежевого, серого и черного тонов. Каждый оттенок выполняет свою задачу: белоснежные тона расширяют пространство, наполняя свежестью, светом и воздухом, черные разбавляют монохромность, привнося строгость, дымчатые добавляют нежности, мягкости, а бежевые создают уют.
Благодаря перепланировке можно было разделить жилище на зоны:
- жилая;
- столовая;
- спальня;
- шкаф шкаф;
- кухня;
- ванная.
Практически квартира разделена перегородкой на 2 части, но визуально комната состоит из множества функциональных зон.
На одной половине дома находится гостиная и спальня. Зона отдыха выглядит приветливой и гостеприимной.Есть 2 кресла, 2 столика и торшер на оригинальных ножках с объемным абажуром. Завершают картину телевизор и экстравагантная люстра.
Спальня хорошо отдохнула. Гармонично, стильно и уютно смотрятся огромная грядка, живые растения и длинные полки.
Вторая половина квартиры представлена гардеробной, кухней-столовой. Особо следует отметить потрясающий торшер на изогнутой ножке с изумительным абажуром, свисающим над столом.
Ванная прелесть — практичная, просторная, светлая, с искусно замаскированной техникой. Стеклянные поверхности создают иллюзию невесомости, добавляя объемов. А елка приносит домашнее задание.
Дизайн этой квартиры невероятно эффектный! Макс Касымов, Москва.
Фото проект №5. Нежный, ласковый дизайн однокомнатной квартиры
Проект идеален для нежных, мечтательных натур.Он очаровывает лаской, приветливостью и радушием.
Цветовая гамма представлена белоснежными тонами с вкраплениями бежевого, синего, светло-бирюзового и серого оттенков. Светлая палитра делает квартиру просторной, синие оттенки приносят свежесть, бежевый наполняет теплом и уютом, а серый пелена — мягкостью.
Перепланировка позволила разделить однокомнатную квартиру на несколько зон: кухню, спальню, рабочую зону и санузел.
Спальня отделена от кухни полупрозрачной перегородкой, стекло которой расписано тонким узором.Рабочая зона представлена огромным столом и большим шкафом с зеркальными дверцами, в котором отражается окно, что делает комнату просторной, светлой.
В кухонной зоне представлен не только стильный гарнитур, но и удобный диван в дуэте с симпатичным столиком. Здесь можно принимать гостей, уединяться, отмечать, отдыхать.
Ненавязчивая фурнитура дополняет картину, добавляя ярких штрихов.
Квартира невероятно уютная и нежная.
Глядя на проекты, можно сделать вывод, что дизайн однокомнатной квартиры 30 кв.
Это может быть квартира в городском стиле: чёткие линии, комбинированное покрытие для стен, деталь, переходящая из комнаты на кухню, например, определённые вид цветка или тема «Парижа», «Стран мира». Очень эффектно смотрится минимализм в оформлении, но это подходит, если в квартире проживает 1-2 человека.
При покупке, убеждайтесь, что позже будет возможность докупить недостающее. Распродажи и акции на качественный материал – это замечательно, но где потом брать дизайнерскую плитку, часть которой, по неосторожности, испортил мастер, если вы забрали остатки, а новую заказывать и ждать не одну неделю.
Сроки предполагаемой работы очень часто отличаются, причём в сторону увеличения. Захотели ламинат, а был линолеум — будьте готовы к тому, что появится необходимость ровнять пол, а это плюс месяц. Решили установить пол с подогревом, а проводка старая – меняем проводку и увеличиваем срок ещё на неделю! Дизайн и ремонт – дело творческое, да ещё и приносящее много пыли и грязи, в которой жить просто невозможно.
По возможности сводим эту часть квартиры к минимуму или убираем вообще – пустая трата пространства не несущая никакого функционала.





Чаще всего стена между кухней и комнатой заменяется декоративной перегородкой (полупрозрачной или глухой), которая позволяет значительно увеличить полезное пространство кухни и создать комфортную зону приема пищи, которая также может выполнять функции гостиной.
Возможен также вариант объединения прихожей с кухней: в этом случае у нас появляется маленькая гостиная, логично связанная с остальным пространством квартиры.
