Проект однушки 40 кв м – Дизайн однокомнатной квартиры 40 кв м – лучшие фото и проекты на 2019
Дизайн однокомнатной квартиры 40 кв.м.
Восхищаться огромными домами с шикарным дизайном, проживая при этом в небольшой квартире — многим знакомая ситуация. Но суровая реальность такова, что не все могут позволить себе жилье с большой площадью, отдавая предпочтение малогабаритным пространствам. Современный дизайн интерьеров продолжает доказывать, что это — не такой уж плохой вариант. Даже в однокомнатной квартире в 40 кв.м. можно создать уютное и комфортное «гнездышко», а мы расскажем о том, как это осуществить.
Особенности дизайна «малогабариток»
Квартиры с маленькой площадью — особый «клиент», который требует соответствующего подхода. Для начала, необходимо определить, кто будет проживать в апартаментах: молодой холостяк или многодетная семья? В первом случае отлично подойдет пространство с открытой планировкой, в котором нет необходимости оформлять отдельные приватные зоны. Во втором — все немного сложнее, но не так безнадежно. Грамотное зонирование помещения с помощью штор, перегородок разной высоты и функциональной мебели помогут разделить площадь так, что места хватит всем.
Далее следует определиться со стилистикой. Маленькая квартира здесь также выдвигает особые требования. Лучше отдать предпочтение стилю, который не предполагает большое количество мебели и декора — они «съедают» драгоценные метры и без того небольшой комнаты. К примеру, классический стиль или прованс будут выглядеть нелепо, а вот минимализм или лофт способны расширить пространство и подстроиться под специфику планировки.
В современном дизайне интерьеров уже существует множество ловких приемов, которые позволят визуально увеличить небольшую площадь. К примеру, зеркальные поверхности создают эффект «второго измерения» и словно продлевают комнату. Светлая цветовая гамма не создает границы, в то время как темные тона наоборот — могут сузить квартиру. Но это не значит, что нужно бояться черный цвет и всячески его избегать — при грамотной планировке он может придать интерьеру зрелое ощущение, не влияя на пространство.
Обладатели высоких окон обязательно должны воспользоваться этим преимуществом и, по возможности, не создавать преград для естественного света — лучше, если он заполнит всю комнату.
Небольшой совет напоследок — не стоит забивать квартиру лишними вещами, а лучше обойтись только самым необходимым.

Однокомнатные квартиры 40 м2 — фото
Для лучшего закрепления материала, предлагаем вам ознакомиться с яркими дизайн-проектами квартир, в которых воплотились все вышеперечисленные рекомендации.
1. Стильный дизайн однокомнатной квартиры 40 кв.м.
Дизайнерам волгоградской студии Solo Design удалось стильно и гармонично оформить эту «однушку». На небольшой площади в 40 квадратных метров они разместили спальню, кухню, гостиную и рабочую зону, воспользовавшись принципом зонирования.
Благодаря отсутствию массивных перегородок и стен, квартира визуально кажется больше и не создает ощущение замкнутости. Спальня отделяется от остального пространства шторой, при этом являясь его продолжением.
Принцип open space позволил воспользоваться приглушенной темной цветовой гаммой даже в жилье с такой небольшой квадратурой. Но в данном случае серые стены и черные предметы мебели вместо того, чтобы уменьшить пространство, создают уютную атмосферу. А большие окна пропускают естественный свет и наполняют помещение «воздухом».

2. Брутальный лофт в однокомнатной квартире 40 кв.м.
Еще один пример того, что не стоит бояться темных оттенков. Объект расположен в Москве и представляет собой однокомнатную квартиру 40 кв.м. с элементами лофта. Проект был разработан дизайнерской студией Int2Architecture, перед которой стояла непростая задача: в короткие сроки создать стильное и презентабельное жилье для сдачи в аренду.
Ограниченный бюджет только усложнял реализацию, но дизайнеры использовали нестандартные решения и оформили жилье максимально стильно и дешево.
Покраска кирпичных стен, открытая проводка, бетонный потолок — все это позволило сэкономить на отделке и приблизиться к стилистике лофта. В интерьере присутствуют необычные винтажные предметы мебели — вроде обеденных стульев или подстолья для раковины, которые были куплены на блошином рынке.
В квартире практически нет массивных перегородок и все жилые зоны представлены в одном пространстве. Но из-за этого не создается ощущение нагромождения предметов — благодаря целостной стилистике и отказа от традиционной большой кухни.

3. Уютное гнездышко — дизайн однокомнатной квартиры 40 кв.м.
В отличие от предыдущего проекта от Int2Architecture, эта квартира выполнена в светлых тонах и оформлена для комфортного проживания молодой пары.
Дизайнеры использовали принцип рационального зонирования, благодаря которому удалось создать зоны кухни, столовой, гостиной, спальни и кабинета — и все это, напомним, в маленькой однокомнатной квартире на 40 кв.м.!
В проекте реализовано множество интересных идей для небольшой площади. К примеру, спальню с кабинетом объединили в одну зону и разместили на пьедестале, который включает дополнительные места для хранения вещей. Высокая перегородка отделяет приватную область от жилой, но не создает преград для проникновения естественного света. Мобильная зона столовой легко перемещается, открывая дополнительное пространство.


4. Дизайн однокомнатной квартиры 40 кв.м. на мансарде
Чудесный проект, реализованный дизайнером Евгенией Островской — это квартира в «Даниловской мануфактуре» в Москве. Задачу просторного оформления подобного жилья усложнял тот факт, что это мансарда, а значит часть помещения сужается за счет наклонного потолка. С другой стороны, чердачное пространство выглядит уютно и открывает новые возможности для планировки.
Стиль лофт для оформления интерьера был выбран не просто так: он отлично вписывается в атмосферу мансарды и позволяет вписать функциональные и практичные детали. Так, для расширения площади использовали мебель-трансформер. Рядом с входной дверью расположена система для хранения вещей, которая перетекает в зону кухни. Наличие зеркал на шкафах визуально расширяет пространство.
Дизайнеру удалось разместить здесь все необходимое для жизни, и даже камин — казалось бы, непозволительную роскошь для такой малогабаритной «однушки».

5. Однокомнатная квартира 40 кв.м. для семьи из трех человек
Кажется, что маленькая квартира с одной комнатой точно не подходит для комфортного проживания матери с двумя детьми, когда каждый член семьи нуждается в личном пространстве. Но дизайнер Ирина Ежова решила доказать, что это не так, и предложила свои варианты решения проблемы.
Все началось с перепланировки: в единственной комнате был возведен подиум, где расположилось спальное и рабочее место для одного из детей. Зона обособлена с помощью функциональных шкафов разной высоты, а сама возвышенность также подходит для хранения вещей.
Для второго ребенка утеплили лоджию и превратили ее в место для отдыха и работы.
Раскладной диван в ночное время хозяйка использует в качестве кровати.
Светлые тона и многоуровневая система освещения наполняют интерьер этой квартиры простором и разнообразием, визуально увеличивая небольшую площадь.

6. Современная однокомнатная квартира 40 кв.м. – дизайн интерьера
Украинская студия Rover Building Company показала, что можно создать функциональный и яркий интерьер даже в малогабаритной однокомнатной квартире. Красочный дизайн, а также уютные элементы декора «оживляют» пространство и позволяют забыть о его площади – всего-навсего 40 м2.
Студийная планировка — отличный вариант для жилья такого типа. Отсутствие стен компенсируется низкими перегородками.
Как и в других проектах, спальню здесь поместили на пьедестал, оградив ее стеклянной стеной. С одной стороны, такая конструкция не создает препятствий, а с другой — прочерчивает плавную границу между жилой и личной зонами.


7. Дизайн однокомнатной квартиры 40 кв.м. в Киеве
Объект расположен в киевском ЖК «Комфорт Таун» и представляет собой небольшую квартиру-студию площадью 40 кв.м. Над проектом работала украинский дизайнер Ирина Сазонова.
Приватная зона здесь может выступать в качестве отдельной комнаты благодаря плотной шторе и многофункциональности помещения. Дело в том, что она вмещает в себя рабочее место, кровать и небольшую гардеробную.
К слову, для экономии драгоценных квадратных метров дизайнер старательно избегала громоздких шкафов и ящиков, отдавая предпочтение открытым полкам и скрытым местам хранения.

8. Однокомнатная квартира-трансформер площадью 40 кв.м.
Итальянская дизайн-студия Brain Factory создала проект однокомнатной квартиры 40 кв.м., концепция которой основана на возможности изменения планировки в любое время в течение дня.
Основа интерьера этой квартиры — детально продуманный модуль, который легко превращается в компактный кухонный стол, обеденный стол или рабочую зону.
Не менее важный элемент — в буквальном смысле подъемная кровать, которая поднимается благодаря прочным лентам и прячется в специальной нише на потолке.

Видео: Дизайн однокомнатной квартиры 40 м2
trizio.ru
фото интерьеров + 5 проектов

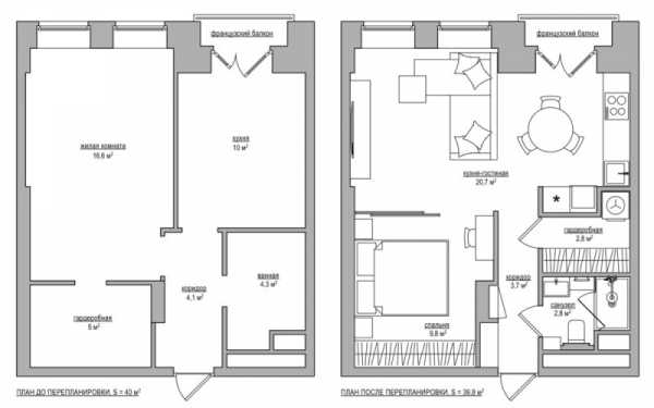
Очень часто молодая семья из двух человек не может позволить себе сразу шикарные апартаменты или двух-, трехкомнатную квартиру. Приходится довольствоваться малой площадью (хотя для небольших городов такие квартиры уже шикарны) однокомнатных квартир, взятых в ипотеку. Чаще всего застройщики предлагают однушки со стандартной планировкой и площадью 40-42 квадратных метра. На планах это отдельная кухня и комната, но чтобы было комфортно жить, чаще всего владельцы задумываются над перепланировкой, деля кухню на две зоны — приготовления, принятий пищи и приема гостей. А спальня так и остается местом для отдыха.
Но существует немало разнообразных вариантов переноса стен и коммуникаций, расстановки мебели и использования всего пространства по максимуму. Мы подобрали для вас пять шикарных дизайнерских проектов перепланировки стандартных однушек площадью 40, 41 и 42 квадратных метра. Приятного просмотра!
Однокомнатная квартира 42 метра с кабинетом на лоджии

Целью данного проекта было создать лаконичное и функциональное пространство с рабочей зоной. Из цветов стали предпочтительны нейтральные с контрастными вкраплениями, благодаря которым создали броский свежий образ современного жилья. При разработке дизайна отказались от лишних декоративных элементов, что помогло создать ощущение бОльшего пространства. В то же время должна быть грамотная организация систем хранения во всей квартире.
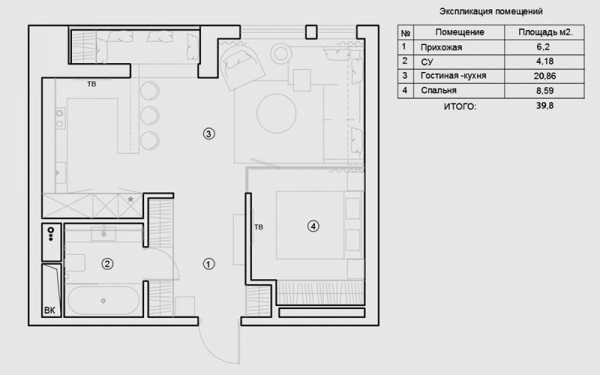
Общая площадь 42 квадратных метра.

- 1 — Гостиная 9 м2
- 2 — Лоджия-кабинет 3 м2
- 3 — Кухня 7 м2
- 4 — Спальня 13 м2
- 5 — Ванная комната 4 м2
- 6 — Холл 5 м2







Дизайнер: Ольга Розина, фото: Борис Бочкарев.
Квартира 40 метров в оливковых и гранатовых оттенках

Основными цветами для интерьера стали: гранатовый, фисташковый и оливковый. Открытая планировка (пожелания заказчицы) превратилась в грамотно спланированное помещение с четко выделенными зонами. Четко определены границы лишь санузла и гардеробной с высокими системами хранения до потолка.
Дизайнер: Veronika Timashok











Однокомнатная квартира 40 квадратных метров со стеклянной спальней

В результате перепланировки однокомнатной квартиры кухня оказалась объединенной с гостиной зоной. Такое решение было продиктовано пожеланиями заказчицы — молодой девушки, которая любит устраивать дружеские посиделки, а для этого необходимо открытое пространство. Чтобы ограничить приватную зону для отдыха, спальное место разместили за стеклянной перегородкой с дополнительно закрывающейся шторой. Это позволяет сохранить в спальне естественное освещение, а при необходимости скрыться с глаз. Дополнительно в спальню была проведена принудительная вентиляция.






Дизайнер: Евгений Жданов, архитектор: Павел Годяев.
Реализованный проект однушки 40 метров в светлых тонах

Дизайн однокомнатной квартиры площадью 40 квадратных метров рассчитан на двух человек. Владельцы останавливаются в данном помещении во время деловых поездок, не проживая в ней постоянно. Свободная планировка и отсутствие межкомнатных перегородок позволило воплотить в жизнь все задумки дизайнера, чтобы получить элегантный интерьер в светлых оттенках. В итоге кухонная зона оказалась объединенной с гостиной, выделены лишь спальня и санузел.
Небольшое пространство рассчитано на молодую семейную пару без детей, о чем говорит отсутствие декора и барная стойка вместо обычного кухонного стола.





Архитектор и автор: Юлия Черняева, фото: Александр Камачкин
Проект однокомнатной квартиры 40 метров в старом доме

Проект небольшой однокомнатной квартиры в историческом центре Москвы для молодой девушки.
Несомненным достоинством в квартире являются высокие потолки, а маленький французский балкончик — ее изюминкой. Благодаря выполненной перепланировке удалось организовать на такой небольшой площади объединенное пространство кухни-гостиной и спальни, разделенные между собой стеклянной раздвижной перегородкой.
Помимо этого немного уменьшив санузел, была организована гардеробная с постирочной.
Общая площадь квартиры после перепланировки составила 39,8 кв.м. м здании

sunrem.ru
85 фото практичных идей для создания уюта
Однокомнатная квартира площадью 40 кв. м требует грамотного подхода. Здесь каждый см должен иметь рациональное использование. Перед тем как приступить к ремонтным работам необходимо придумать подробный дизайн – проект, который будет содержать в себе уютную атмосферу.
Интерьер квартиры 40 кв.м. должен быть удобным и комфортным. Современные новостройки позволяют модернизировать помещение делая его максимально просторным.

Большинство малогабаритных апартаментов превращаются в квартиры – студии. Здесь кухонная и гостиная зона совмещены между собой. Два пространства разделены мягким мебельным гарнитуром. В нашем материале представлены лучшие идеи для оформления современной квартиры.

Краткое содержимое обзора:
Особенности малогабаритного интерьера
Дизайн однокомнатной квартиры должен выполнять основные требования своих хозяев. Современная мебель обладает многофункциональностью, которая позволяет экономить достаточно свободного места в квартире. Вместительная система хранения помогает спрятать бытовые вещи от посторонних глаз.
Помимо планировки квартиры, необходимо определиться со стилистическим направлением будущего дизайна. Опытные профессионалы рекомендуют выбирать современные направления. Они позволяют экономить достаточное количество свободного места.

Например, классический интерьер требует наличия многослойных конструкций, объемной мебели и наличия натурального массива дерева.

Стиль хай-тек и модерн характеризуется присутствием четких линий и минимальным количеством мебельной атрибутики. Здесь отсутствуют различные декоративные мелочи. Интерьер наполнен только необходимыми предметами. Как правило, здесь предусмотрена вместительная система хранения.

Помимо этого здесь преобладает большое количество блестящих и глянцевых поверхностей. Они визуально вытягивают пространство комнаты в несколько раз. Она выглядит более светлой и просторной. Для большего эффекта можно использовать зеркальные панно.

Рациональное зонирование пространства
В процессе выбора дизайна, необходимо правильно обозначить доступную площадь. Правильная расстановка мебели и перегородок позволяют создать единый интерьер. Зону приготовления пищи располагают возле центральной стены.

Компактный кухонный гарнитур способен вместить все бытовые принадлежности. Обеденная группа может быть представлена в виде высокой барной стойки. Ширина столешницы подбирается в соответствии с вашими пожеланиями.
Если в квартире будет проживать молодежь, то зону отдыха оформляют при помощи мягкого углового дивана. Большая часть конструкции будет располагаться в угловой части помещения. Как правила, такие модели легко трансформируются в полноценное спальное место.

Семейным парам наверняка понравится кровать-трансформер, которая аккуратно складывается в полость встроенного шкафа. Для маленьких детей подойдут компактные диваны. Они имеют хорошее ортопедическое основание, которое поддерживает тело в правильном положении.

Разграничить пространство помогут сквозные перегородки в виде полок. Здесь можно расположить различную мелочь, книги, настольные лампы и многое другое. Чтобы жилая зона выглядела просторной, рекомендуется отказаться от большого скопления предметов и бытовой техники. Мебельная атрибутика должна иметь компактный дизайн.

Цветовая палитра помещения
Какой цвет выбрать для небольшой квартиры? Здесь важно учитывать расположение окон. Если большую часть времени в помещении преобладает солнечное освещение, то лучше всего подбирать холодные оттенки:
- голубой;
- серый;
- фисташковый;
- сиреневый.

Эти цвета отлично дополняют дизайн однокомнатной квартиры. В вечернее время компенсировать отсутствие света поможет дополнительная подсветка. Точечная помогает выделить отдельные зоны в помещении.

Если окна выходят на северную сторону, то здесь необходимо подбирать более теплые оттенки:
- желтый;
- персиковый;
- оранжевый;
- бежевый;
- молочный.

Такая палитра позволяет создать максимально комфортный интерьер для малогабаритного жилья. Помимо этого можно применить светодиодную ленту размещенную по всему периметру пространства.
Современное поколение предпочитает выбрать темные цвета:
- черный;
- темно-бордовый;
- красный;
- венге.

Наличие таких оттенков в помещении делают его мрачным и не комфортным. Восполнить недостаток уюта, поможет мягкий текстиль и дополнительные источники света.

Настольные лампы должны излучать желтый свет. Светлая мебель на темном фоне помогает увеличить пространство квартиры.

Она должна иметь трансформируемый механизм, который позволит освободить больше места. На фото квартиры 40 кв. м. представлены лучшие варианты оформления, которые сочетают в себе рациональное использование и необычное дизайнерское решение.

Фото квартиры 40 кв. м.











































dizainmetrov.ru
Дизайн однокомнатной квартиры 40 кв. м ❤

При грамотном зонировании однокомнатной квартиры — места и пространства хватит на все необходимые зоны и предметы мебели
Недвижимость стоит дорого, каждый квадратный метр на счету. Именно поэтому многие покупают квартиры-студии, в которых все в одном месте и на виду. Если же интерьер однокомнатной квартиры необходимо обустроить на площади порядка 36-40 кв. м, то разогнаться в мебельных изысках не так уж и просто. Основная задача в этом случае – сделать функциональный дизайн, а если он будет еще и стильным, это станет отличным бонусом!
Содержание:

Выдержанный интерьер гостиной с геометрическими и цветовыми акцентами

Оптимальное решение для квартиры, площадью 40 кв. метров — это опен-спейс и объединенные пространства

При выборе светлой цветовой гаммы не забывайте о мелких акцентах и деталях, именно они в итоге «делают лицо» вашей квартиры
Современный дизайн однокомнатной квартиры 40 кв. м: с чего начать?
Главная проблема – это рациональная организация пространства. Тут уж хочешь не хочешь, но выделить несколько ключевых зон придется:
- Спальня.
- Рабочее пространство.
- Кухня.
- Место для приема гостей.
- Если есть ребенок, нужно обустроить для него уголок.

Подоконник вполне способен заменить обеденный стол для двоих
с

Белая кухня с комнатными растениями
Стоит приготовиться, что легко не будет, но вместить все это, еще и выдержав определенный стиль, реально.
Совет! Для того чтобы удалось осуществить функциональное зонирование однокомнатной квартиры, следует четко выделить две зоны: гостевую и приватную.

Если вы владелец однокомнатной квартиры с небольшой площадью — обратите внимание на скандинавский стиль в интерьере

Ковер или подиум отлично разграничит зоны в небольшой квартире при наличии совмещенных комнат
Оригинальные идеи и уловки для интерьера однокомнатки
При создании дизайна, подборе стиля можно использовать оригинальные уловки, которые пойдут на пользу интерьеру.
Четкое зонирование квартиры
В этом случае удобнее всего использовать мебель. С ее помощью можно обустроить зоны для встречи гостей, работы, сна. В этом случае можно поставить в квартире:
- Стеллажи, но не ширмы, которые занимают много площади.
- Секретеры, а не письменные столы.
- Комоды. Не стоит думать, что они маловместительны: в некоторых из них одежды вмещается больше, чем в стандартный (средний) шкаф.
Важно! За счет правильной планировки можно визуально увеличить даже относительно небольшое пространство.

Зонирование можно легко осуществить цветами и текстурами

Стильная глянцевая кухня с геометрическим фартуком

Если ваша кухня не располагает большими площадями — попробуйте отказаться от навесных шкафчиков на стене в пользу открытых полок. Габаритные кастрюли и прочие аксессуары вполне влезут в нижние кухонные тумбы
Идеи для экономии пространства в рамках 40 кв. м
В современном интерьере можно смело отказаться от таких пережитков СССР, как стенка, диван (если он не спальное место), кресла. Та мебель, которую сейчас можно найти, очень удобна и практична, а главное – компактна. Именно подобную следует выбирать для обустройства такой многофункциональной площади. Яркие примеры:
- Если вся семья собирается перед телевизором, усевшись на диване, кресла ни к чему.
- Посадить гостей можно прямо на полу, подстелив удобные и мягкие подушки. Они компактны, к тому же их можно убрать в шкаф или на балкон.
- Если работаете с ноутбуком за кухонным столом, то отдельное рабочее место обустраивать не имеет смысла.
Просто нужно реально обдумать, какие привычки у семьи, и основываясь на этом, сделать выбор в пользу той или иной мебели.

Белый — всегда останется классикой для малогабаритных квартир и студий
Трансформеры для однокомнатной квартиры: диван + кровать
Нет, мы не советуем использовать раскладной диван вместо кровати, хотя это тоже неплохое решение. Лучше оригинально поставить эти два предмета – спинкой друг к другу. В этом случае удастся создать более или менее обособленный участок – спальную зону и место для досуга.

Кровать-трансформер может сэкономить много места

Зонирование с помощью перегородки
Выбор цвета для стен квартиры
Даже однокомнатную квартиру хочется наполнить яркими элементами, и тут переусердствовать нельзя, ведь это приведет к тому, что помещение еще больше визуально ужмется. Но выход есть – делать яркие акценты в мелких элементах декора, текстиле или малогабаритной мебели.

В качестве цветового акцента отлично подойдут кухонные фасады

Стильный современный интерьер с ярким стулом
Столовая в однокомнатной квартире — реальность
Часто пространство на кухне столь ограниченное, что приходится выдумывать, где разместить семью для приема пищи. Вполне удобный вариант – это организация столовой зоны в комнате. Стол, который там следует поставить, будет одновременно и обеденным, и рабочим. Так можно избежать захламления квартиры.
Оптимальное решение! Хотя помещение небольшое, актуально использовать именно круглый стол – он будет выглядеть аккуратнее.

Барная стойка отделяет кухню от гостиной

Необычная стенка украшает интерьер
Функциональное место над кроватью
Над изголовьем кровати всегда есть свободная стена, и ее редко используют для чего-то большего, чем картина, а зря. Этот огромный простор можно приспособить для полок, хотя многих напрягает, если над головой что-то висит. Можно проверить свою реакцию, например, повесив для начала небольшую легкую полочку. Когда привыкнете, можно монтировать что-то увесистое, позаботившись о качественных крепежах.
Зонирование однокомнатной квартиры площадью 40 кв. м
Если в самом начале свободное, пусть и небольшое пространство кажется интересным и нестандартным, то спустя какое-то время это может вызывать дискомфорт. В такой квартире нет места для уединения, особенно это актуально, если в ней проживает семья с детьми или даже с одним ребенком.
Конечно, в таких условиях сделать разделение на функциональные участки реальными стенам не выйдет, а вот легкие перегородки в виде ткани или шкафов вполне подойдут. Оригинальные решения, которые можно применить в любом стиле:
- Легкая перегородка из гипсокартона. Зачастую ее делают не сплошной, а такой, чтобы она перекрывала только 30-40% комнаты. В этом случае получится выполнить две задачи: ограничить пространство, но не перегородить комнату.
- Шкаф. Имеется в виду не классический шкаф, а что-то наподобие открытых полок, и оптимально, если у них не будет задней стенки, а только сквозные полки. В таком случае на них можно разместить книги, мелкие сувениры, другие вещи. При этом мебель не будет казаться громоздкой и тяжелой. В таком шкафу можно складировать даже одежду, но для этого предварительно следует закупить полимерные ящики под ротанг по размеру ячейки. Такая система хранения выглядит стильно и оригинально.
- Подиум. Кроме того что подобным способом можно отменно зонировать пространство, это решение функциональное. Что касается разделения пространства, то подиум довольно четко выделяет место для сна, и его зачастую используют в комбинации со шторами, которые можно закрыть или раскрыть в период бодрствования. Что касается практической стороны, то под конструкцией можно расположить довольно внушительные полки, а значит, получится добавить еще одну систему хранения, которая не будет загромождать единственную комнату.

Перегородка из гипсокартона отделяет кровать

Плотные шторы темного цвета хорошо зонируют комнату

Зона гостиной на небольшом подиуме
Совет! Подиум может быть еще более функциональным. Так, в него можно прятать не ящики, а кровать на роликах. А сверху площадки создать рабочее место или детскую зону. Подобный вариант сильно сэкономит полезное пространство.
Неочевидные участки для систем хранения в доме
Даже в компактной однокомнатной квартире можно найти не всегда очевидные места для полок и комодов. Среди них:
- Стены над диваном, столом – здесь можно повесить полки, стеллажи. При этом важно, чтобы они были удобными и не мешали нормальному перемещению по квартире.
- Углы – в них отменно размещаются угловые полки, которые могут быть более чем практичным решением.
- Коридор – в нем прямо под потолком можно расположить полки-антресоли. На них следует размещать вещи, которые используются редко, или сезонные.
- Под широким подоконником удачно размещается невысокий комод.

Система хранения, спрятанная в подиуме
Выбор мебели для малогабаритной квартиры (35, 36, 38 и 40 кв. м)
Первое, что нужно учесть: стандартную мебель поставить в это многофункциональное помещение не получится, скорее всего, придется заказывать ее индивидуально. Но есть несколько универсальных вариантов, которые оптимально подходят именно для однушек.
Модульная мебель
Секционная или модульная мебель – это как конструктор для взрослых. Особенно это удобно, если ее делают под заказ, то есть под размер комнаты. Модульные системы удобны тем, что их можно поставить где угодно и скомбинировать так, как удобно, хоть всю свободную стену ими заполнить.
Важно! Удобство таких гарнитуров состоит в в том, что стилистика выдержана единая для всех элементов коллекции – от навесных шкафов до компьютерного стола. Такое решение упрощает процесс организации пространства.

Интерьер в стиле модерн с роскошной кроватью

Модульная система хранения с кроватью-трансформером
Шкаф-купе для однокомнатной квартиры
Это отменное решение! Сделав такой шкаф на заказ, можно поставить его под стеной от пола до потолка, и так удастся задействовать всю площадь. Удобство заказа системы хранения в том, что ее можно наполнить как угодно, по своему усмотрению.
Мебель-трансформер
Даже в столь ограниченном пространстве хочется иметь свободное место, но при том, что в помещении нужно разместить много предметов, это воплотить довольно сложно, но реально. На выручку приходит мебель-трансформер. Имеется в виду не складной диван или кресло, а реально функциональные предметы, которые могут превращаться в другие, среди которых:

Рабочая зона, спрятанная в шкаф

Минималистский интерьер с кроватью, вмонтированной в шкаф
- Откидной столик, который служит хранилищем мягких игрушек в ночное время.
- Кресло-комод для складирования сезонных вещей.
- Кровать, которую можно убрать в шкаф.
- Шкаф-купе. В него можно прятать гладильную доску, столик. Даже бывает ящик, который опускается, а не выдвигается.

Яркий современный интерьер

Дизайн с элементами кантри
Важно! При создании интерьера и заказе мебели следует полностью полагаться на себя. Никто, кроме самих хозяев, не сможет максимально удобно организовать пространство.
Стили интерьера для интерьера однокомнатной квартиры 40 кв. м
Так как пространство ограниченно, необходимо выбирать стилистику интерьера, которую можно было бы реализовать в светлых тонах. В этом случае оптимальные варианты:

Классический интерьер в пастельных тонах

Зеркальная стена визуально увеличит пространство
- Минимализм – прямые углы и простые формы. Такая стилистика не предусматривает вычурности и излишеств. Цветовая палитра исключительно светлая, могут использоваться контрастные оттенки.

Скандинавский стиль в интерьере

Белая кухня в стиле минимализм

Красивая студия в серых тонах

Светлая и лаконичная кухня, совмещенная с гостиной

Студия в стиле кантри
Вывод
Организовать площадь в однокомнатной квартире не так и сложно. К этому процессу и всем его аспектам нужно подойти взвешенно и внимательно, учитывая потребности и привычки того, кто будет жить в этом доме.
happymodern.ru
однокомнатная квартира 40 кв.м. на фото
Недвижимость – удовольствие не из дешевых, поэтому не каждый может приобрести огромную квартиру. Именно поэтому большинство людей проживает в небольших квартирах, площадь которых ограничена, а каждый квадратный метр играет большую роль. В таких случаях отдается предпочтение студии-квартире, так как все находится в одном месте, удобно располагается и остается на виду. Если габариты жилья около 40 квадратов, то сложно позволить себе мебельные изыски. Правильно подойдя к решению проблемы, можно создать не только функциональный, но и стильный интерьер.

Возможные трудности
Труднее всего в квартире с небольшой площадью правильно и рационально организовать пространство. Как бы ни хотелось, но жилье должно иметь кухню и гостиную, спальню, место для детей и приглашенных гостей. Поэтому придется тщательно продумывать пространство, обустроив все эти функциональные зоны.
Создать все гармонично не просто, но возможно, если придерживаться одного конкретного стиля и отдать свое предпочтение функциональности, а не нагромождениям. Для функционального зонирования необходимо обозначить точные грани между личной и гостевой зоной.

Оригинальные задумки и хитрости
Во время обустройства жилья и выборе оптимального стиля нужно прибегать к различным уловкам, способным улучшить интерьер и пойти ему на пользу.
В первую очередь нужно заняться зонированием, для четкого разделения квартиры на зоны лучше использовать мебель. Для этого нужно использовать стеллажи, отказавшись от ширм. Большие письменные столы лучше заменить секретерами, а вместо шкафа купить большой и вместительный комод. Если все распланировать правильно, то можно сделать пространство не только функциональным, но и зрительно большим.

Нужно исключить все то, что не является обязательным. Современный интерьер может легко существовать без стенки и дивана (не считая случая, когда он является спальным местом), больших диванов, что занимают лишние квадратные метры. Сейчас на выбор покупателя предлагается много удобной и компактной мебели, практичность которой не уступает старинным аналогам. Именно поэтому лучше отдать предпочтение именно такой мебели, для создания функционального интерьера.
Например, лучше, чтобы семья собиралась за просмотром телевизора на уютном диване, кресла в этом случае будут лишними. Гостям можно предложить стильные подушки, с которыми удобно сесть на пол, а при желании их можно быстро спрятать в шкаф. Вместо отдельного рабочего места можно использовать кухонный стол, достаточно сесть с ноутбуком за него. В таком случае вместо рабочей зоны можно соорудить детскую или зону отдыха.

Нужно корректировать цветовую гамму, ведь всегда хочется наполнять жилье яркими элементами, однако тут желательно держать себя в рамках. Лучше всего использовать лишь яркие нюансы, например, текстиль или яркую мелкую мебель, что увеличит пространство визуально, а не наоборот.
Столовую зону лучше всего располагать в комнате, так как зачастую кухня ограничена в свободном пространстве. В этом случае обеденный стол может использоваться как рабочий, а это позволит избежать нагромождений. Дизайнеры советуют обратить внимание на столы круглой формы, они хоть и кажутся большими, но выглядят аккуратнее.
Очень хорошей идеей будет использование стены над кроватью. Зачастую там вешается только картина, а зря. Расположив удобные полки можно оптимизировать пространство, однако не все к этому готовы. В таком случае для начала предлагается повесить одну небольшую полку, а когда это станет привычным, то можно соорудить что-то более весомое, главное позаботиться о надежной системе креплений.

www.remontbp.com
Квартира 40 кв. м. — 90 фото качественных проектов и интересных решений
Позволить приобрести себе большие апартаменты может далеко не каждый. Многие довольствуются небольшими площадями. Именно поэтому однокомнатная квартира 40 кв. м. является довольно распространенным типом жилья, в котором вполне сможет ужиться полноценная семья из трех человек.

Основной проблемой малогабаритного жилого помещения является необходимость в рациональной организации полезного пространства. Однако, несмотря на небольшие размеры, квартиру студию 40 кв. м. возможно организовать так, после чего получится удобное функциональное пространство, имеющее свой уникальный стиль и внешний облик.

Начало работ по обустройству однушки
Начало ремонта квартиры 40 кв. м. стоит начинать с разработки проекта. Если возможности обратиться к профессиональный дизайнерам-проектировщикам нет, то простых набросков карандашом на бумажном полотне будет достаточно для того, чтобы произвести примерные расчеты и распланировать полезное пространство удобно.

При составлении проекта обращать внимание стоит на следующие моменты:
- бюджет, в который уже включены денежные средства на непредвиденные траты;
- конструктивные особенности помещения, включая все ниши, выступы, перекладины и т.д.;
- количество домочадцев, которые проживают на площади постоянно, с учетом их нужд и желаний;
- выбранная стилистическая концепция;
- месторасположение главных мебельных групп и аксессуаров.
Приемы зонирования
Так как площадь в 40 квадратов нельзя назвать очень большой, а проживающим на них людям хочется ощущать комфорт, при организации планировки квартиры 40 кв. м. рекомендуется использовать приемы зонирования.

Возведение перегородки с целью визуально и практически разграничить функциональные участки. Возможно возвести гиспокартонную конструкцию, которая перекрывала бы площадь не полностью, а лишь на 40 процентов.

Стеллажи с открытыми сквозными секциями. На таких полочках легко разместятся любимые книжные издания, приятные сувенирные вещицы и другие аксессуары.
А закупив ящики из пластмассы, имитирующие ротанговые короба, можно хранить на таких стеллажах даже бельевые комплекты или одежду. При этом общий вид такой мебельной конструкции не будет выглядеть громоздко, а помещение захламленным.

Подиум — не только является инструментом для зонирования, но еще и весьма функциональным решением. Такая конструкция очень четко разделяет пространство, а в комбинации с занавесами на нем удается скрыть размещенную кровать от посторонних взглядов.

С конструктивной точки зрения подиум хорош тем, что пространство пол ним используется как полноценная вместительная система хранения.

Стилистика небольших помещений
Простой принцип оформления дизайна квартиры 40 кв. м. заключается в использовании светлой колористики. Именно, исходя из этого условия, и подбираются стили помещения, среди которых самыми подходящими являются:

Классицизм с его правильными формами и симметрией, здесь четко соблюдаются пропорции. Для отделки стеновых поверхностей подойдут нежные полотна обоев, на полу лучше выстелить паркет или ламинат.

Минималистические направления хороши своими прямыми углами и простейшими формами. Эти стилистики исключают вычурность, палитра тонов светлая, с включением ярких деталей.

Лофт стилизация с промышленным характером как нельзя кстати придется для небольшой жилплощади.

Выбор мебельных групп
При выборе мебельного оснащения для небольшой однушки следует понимать, что стандартные мебельные группы здесь просто неуместны. Наиболее подходящими моделями станут модульные комбинации, которые можно подбирать по нужным размерам, а комплектация будет отвечать всем требованиям.

Хороши модули тем, что все предметы имеют одинаковую стилистику, благодаря чему весь дизайнерский концепт будет единым целым.

Другая очень вместительная и полезная вещь в интерьере 40-ка метровой однушки это шкаф-купе, возведенный от пола до самого потолочного полотна.
Максимально удобно использовать на небольших площадях транформирующуюся мебель. Среди таких предметов полезными будут откидного типа стол, превращающийся в систему хранения, кровать, которую можно днем использовать как диван или же модель, которая убирается в дневное время в шкаф как на фото квартиры 40 кв. м. и т.д.

Что касается размещения, то в спальной зоне кровать лучше расположить возле оконного проема. При этом целесообразно заменить обычные шторы на коротенькие легкие занавески и жалюзи.

Обустраивая кухню предпочтение следует отдавать многофункциональным гарнитурам, выполненным из светлых глянцевых материалов. Отражающийся от таких поверхностей свет наполнит пространство воздухом, создавая иллюзию просторного помещения.

В угловой части кухонного участка можно разместить мягкий диванчик и закругленный обеденный стол.

Чтобы разделить кухонную и гостевую зоны, возможно воспользоваться деревянной компактной перегородкой, которая послужит установкой под телевизионную технику.

Поставив в гостевую зону небольшой мягкий диван и компактный столик, можно организовать уютное пространство для приема гостей и приятного времяпрепровождения.

Динамику и индивидуальность помогут привнести в интерьерную композицию яркие аксессуары, аквариумы, изящные полотна картин, подходящие под стилистику интерьера.

Фото квартиры 40 кв. м.









































Также рекомендуем посетить:
strojka-gid.ru
Три квартиры 40 кв. м. с современным дизайном. Красивые интерьеры и дизайн
Когда речь идет о квартирах с маленькой площадью, каждый сантиметр на счету. Нередко такую квартиру сразу переделывают в студию, чтобы получить большую и комфортную площадь для проживания.
Но это не всегда это удобно, так как каждому человеку просто необходимо личное пространство. Если грамотно подойти к планировке квартиры, можно получить уютную и комфортную для проживания студию, в которой место найдется всем! Вашему вниманию — три грамотно оформленные квартиры-студии площадью 40 кв.м.
Современный дизайн квартиры 40 кв.м.

Давайте рассмотрим дизайн студии 40 кв. м. от Solo Design Studio. С самого начала владельцы хотели получить от дизайнеров квартиру, разделенную на отдельные зоны.
Интерьер выполнен в темных цветах

Спальня отделена занавеской

Спальная зона – просто идеальное место для спокойного и глубокого сна. Штора во всю длину идеально подходит для вечернего отдыха, пропуская немного непрямого освещения и защищая от ярко светящих подвесных ламп.

На небольшой площади уместилось все необходимое



Добавление ярких цветов в интерьер выделяет гостиную. Настенная полка над телевизором выполнена с добавлением бирюзового цвета, а ковер с геометрическим узором будто объединяет все пространство. Современный дизайн однокомнатной квартиры 40 кв. м. обязательно предполагает наличие небольшого «буйства красок».

Стены серого цвета гармонично сочетаются с обстановкой

В квартирах, где акцент идет на спальню и гостиную комнату, столовая и кухня выполняются в более темной палитре оттенков. Деревянные шкафы отлично сочетаются с остальной мебелью.
К слову, современный дизайн квартир 40 кв. м. позволяет сочетать в себе сразу несколько вещей: минимализм, роскошь и домашний уют. Разделив квартиру на функциональные зоны, объединенные одним стилем, вы получите идеальную обстановку, в которой так приятно находиться.

Дизайнер: Solo Design Studio
Дизайн студии 40 кв.м.

Этот смелый дизайн принадлежит украинскому архитектору Анастасии Антонюк. Он действительно производит огромное впечатление и не верится, что площадь квартиры составляет всего 43 кв. м.
Несложно заметить черную матовую стену по центру квартиры, которая ловко скрывает внутреннюю часть ванной комнаты. Окно, расположенное сверху, пропускает естественный свет в ванную и одновременно выполняет декоративную функцию: монохромный дизайн квартиры разбавлен яркими всплесками желтого и зеленого.
ЧИТАЙТЕ ТАКЖЕ: Гостиная в желтых тонах, 27 фото

На небольшой площади поместились внушительный шкаф, двуспальная кровать и диван

Эклектичный декор стирает все границы и буквально нарушает любые правила визуального восприятия. Этот стиль поможет выразить индивидуальность и наполнить квартиру необычными и редкими вещицами. Отдав предпочтение такому декору, не нужно будет мучиться и делать сложный выбор между направлениями и стилями. Это отличная возможность попробовать объединить два стиля в один.
Оформление стен придает дизайну ощущение очаровательной небрежности

Первое, на что падает взгляд на кухне – великолепные винтажные приборы от Smeg, выполненные в нежной пастельной гамме. Далее мы видим необычный вариант промышленного освещения — ретро-лампочки Эдисона, которые не только ярко освещают пространство, но и сами по себе являются ярким предметом декора.


Бабушкин комод и ковер ручной работы напоминают о детстве

Атмосфера домашнего уюта в этой квартире достигнута благодаря тщательному подбору мелких деталей в интерьере. Все гармонично и так, как должно быть!
Фото: Дизайн однокомнатной квартиры 40 кв. м.

Организовать удобное хранение вещей в маленькой квартире задача не из легких. В данном случае мы видим, как при помощи компактных полок удалось разместить все вещи и освободить пространство вокруг. Самое важное – полки не акцентируют на себе внимание.


Архитектор: Nastya Antonyuk Визуализация: Anya Garienchick
Современный дизайн однокомнатной квартиры 40 кв.м. с фото

Работая в небольшой квартире, площадь который составила всего 43 кв. м., Михаил Темников предпочел минималистский подход к оформлению интерьера. Дерево, проволока и бетон – три недорогих материала, применяя которые, дизайнер проделал фундаментальную работу. Интерьер в квартире выглядит свежо и утонченно.

Придать интерьеру яркости и креативности получилось за счет живой вьющейся виноградной лозы на стене. Она выступает отличным акцентом и в тоже время не смотрится громоздко в минималистическом пространстве.
Необычный дизайн предметов интерьера смотрится футуристично

Различные оттенки серого составляют основу цветовой гаммы


В интерьере существуют два пространства – позитивное и негативное. Позитивное пространство определяется мебелью, картинами, цветом, коврами. Негативное задает стиль помещению, служит каркасом, который держит все элементы схемы вместе. Порой о нем забывают, но на самом деле негативное пространство играет немаловажную роль.
Общее восприятие интерьера зависит от правильно распределенного баланса негативного и позитивного пространства. При создании любого интерьера в силу вступают законы композиции, которые обеспечивают логичное и красивое расположение предметов с целью создать единое пространство.
Кухонные фасады без ручек как будто сливаются с обстановкой

Бетон давно перестал быть только строительным материалом и превратился в предмет для творчества. Decha Archjananun – дизайнер, который решил отойти от стандартов и создал сосуды для цветов из бетона. Он отлично сочетается с нежными и хрупкими растениями.
ЧИТАЙТЕ ТАКЖЕ: Красивые бетонные фигуры для сада своими руками
Главное — использовать подходящий бетон и в конце покрывать его приличным слоем матового лака, благодаря которому бетон не будет пылить со временем.
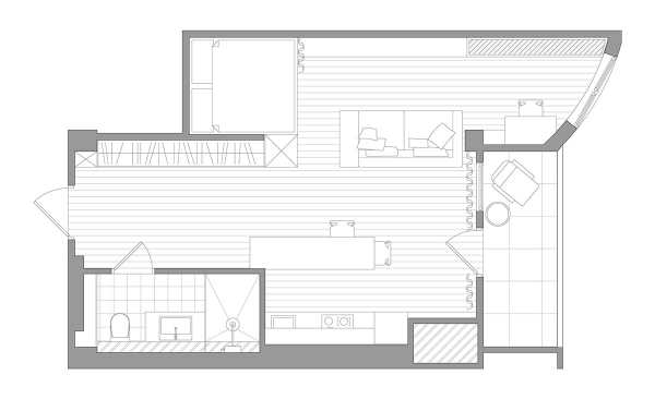
План помещения

Дизайнер: Michael Temnikov
homebuilding.ru