ΠΡΠ°Π²ΠΈΠ»ΡΠ½Π°Ρ ΡΠ°ΡΠΊΠ»Π°Π΄ΠΊΠ° Π»Π°ΠΌΠΈΠ½Π°ΡΠ°: Π£ΠΊΠ»Π°Π΄ΠΊΠ° Π»Π°ΠΌΠΈΠ½Π°ΡΠ° ΡΠ²ΠΎΠΈΠΌΠΈ ΡΡΠΊΠ°ΠΌΠΈ ΠΏΠΎΡΠ°Π³ΠΎΠ²Π°Ρ ΠΈΠ½ΡΡΡΡΠΊΡΠΈΡ
ΠΡΠ°Π²ΠΈΠ»ΡΠ½Π°Ρ ΡΠ°ΡΠΊΠ»Π°Π΄ΠΊΠ° Π»Π°ΠΌΠΈΠ½Π°ΡΠ°, ΠΌΠ°ΡΡΠΈΠ²Π°, ΠΏΠ°ΡΠΊΠ΅ΡΠ½ΠΎΠΉ Π΄ΠΎΡΠΊΠΈ ΠΈ Π΄Π»ΠΈΠ½Π½ΠΎΠΉ ΠΏΠ»ΠΈΡΠΊΠΈ
ΠΠ°ΠΌΠΈΠ½Π°Ρ, ΠΌΠ°ΡΡΠΈΠ², ΠΏΠ°ΡΠΊΠ΅ΡΠ½Π°Ρ Π΄ΠΎΡΠΊΠ° ΠΈ Π΄Π»ΠΈΠ½Π½Π°Ρ ΠΏΠ»ΠΈΡΠΊΠ° ΠΎΡΠ½ΠΎΡΡΡΡΡ ΠΊ Π΄Π»ΠΈΠ½Π½ΡΠΌ Π½Π°ΠΏΠΎΠ»ΡΠ½ΡΠΌ ΠΏΠΎΠΊΡΡΡΠΈΡΠΌ Ρ ΡΠ²Π½ΠΎ ΠΎΡΠ΅ΡΡΠ΅Π½Π½ΡΠΌ ΠΊΠΎΠ½ΡΡΡΠΎΠΌ. ΠΡΠΎ Π·Π½Π°ΡΠΈΡ, ΡΡΠΎ Π² Π΄Π°Π½Π½ΠΎΠΌ ΠΏΠΎΠΊΡΡΡΠΈΠΈ ΠΌΡ Π²ΡΠ΅Π³Π΄Π° ΠΌΠΎΠΆΠ΅ΠΌ ΡΠΊΠ°Π·Π°ΡΡ Π³Π΄Π΅ Π·Π°ΠΊΠ°Π½ΡΠΈΠ²Π°Π΅ΡΡΡ ΠΎΠ΄ΠΈΠ½ ΡΠ»Π΅ΠΌΠ΅Π½Ρ ΠΏΠΎΠΊΡΡΡΠΈΡ ΠΈ Π½Π°ΡΠΈΠ½Π°Π΅ΡΡΡ Π΄ΡΡΠ³ΠΎΠΉ, Π° ΡΠ°ΠΊ ΠΆΠ΅ Π΄Π»ΠΈΠ½Π½Π° ΠΎΡΠ΄Π΅Π»ΡΠ½ΡΡ ΡΠ»Π΅ΠΌΠ΅Π½ΡΠΎΠ² ΠΏΡΠΈΠΌΠ΅ΡΠ½ΠΎ Π² 4,5 ΡΠ°Π·Π° ΠΏΡΠ΅Π²ΡΡΠ°Π΅Ρ ΡΠΈΡΠΈΠ½Ρ. ΠΠ΅Π»Π°Ρ ΡΠ΅ΠΌΠΎΠ½Ρ ΠΊΠ²Π°ΡΡΠΈΡΡ ΠΊΠ°ΠΆΠ΄ΡΠΉ Π·Π°ΠΊΠ°Π·ΡΠΈΠΊ Π·Π°Π΄Π°Π΅ΡΡΡ Π²ΠΎΠΏΡΠΎΡΠΎΠΌ: Π° ΠΊΠ°ΠΊ ΠΆΠ΅ ΡΠ°ΡΠΏΠΎΠ»ΠΎΠΆΠΈΡΡ ΡΠ»Π΅ΠΌΠ΅Π½ΡΡ Π½Π°ΠΏΠΎΠ»ΡΠ½ΠΎΠ³ΠΎ ΠΏΠΎΠΊΡΡΡΠΈΡ Π½Π° ΠΏΠΎΠ»Ρ? Π Π² Π΄Π°Π½Π½ΠΎΠΉ ΡΡΠ°ΡΡΠ΅ ΠΌΡ ΠΏΠΎΠΌΠΎΠΆΠ΅ΠΌ ΠΠ°ΠΌ Ρ ΡΡΠΈΠΌ ΡΠ°Π·ΠΎΠ±ΡΠ°ΡΡΡΡ.
Π£ΠΊΠ»Π°Π΄ΡΠ²Π°ΡΡ Π½Π°ΠΏΠΎΠ»ΡΠ½ΠΎΠ΅ ΠΏΠΎΠΊΡΡΡΠΈΠ΅ ΠΌΠΎΠΆΠ½ΠΎ Π΄Π²ΡΠΌΡ ΡΠΏΠΎΡΠΎΠ±Π°ΠΌΠΈ:
— Π΅Π΄ΠΈΠ½ΡΠΌ ΠΊΠΎΠ½ΡΡΡΠΎΠΌ;
— Ρ ΡΠ°Π·Π΄Π΅Π»Π΅Π½ΠΈΠ΅ΠΌ Π½Π° ΠΎΡΠ΄Π΅Π»ΡΠ½ΡΠ΅ ΠΏΠΎΠΌΠ΅ΡΠ΅Π½ΠΈΡ.
ΠΠ°ΡΠΊΠ΅ΡΠ½ΡΡ Π΄ΠΎΡΠΊΡ ΠΈ ΠΌΠ°ΡΡΠΈΠ² ΡΠΊΠ»Π°Π΄ΡΠ²Π°ΡΡ ΡΠΎΠ»ΡΠΊΠΎ Ρ ΡΠ°Π·Π΄Π΅Π»Π΅Π½ΠΈΠ΅ΠΌ Π½Π° ΠΎΡΠ΄Π΅Π»ΡΠ½ΡΠ΅ ΠΏΠΎΠΌΠ΅ΡΠ΅Π½ΠΈΡ, ΡΠ°ΠΊ ΠΊΠ°ΠΊ ΠΏΡΠΈ Π΅Π³ΠΎ ΡΠΊΠ»Π°Π΄ΠΊΠ΅ Π΅Π΄ΠΈΠ½ΡΠΌ ΠΊΠΎΠ½ΡΡΡΠΎΠΌ Π²Ρ Π³Π°ΡΠ°Π½ΡΠΈΡΠΎΠ²Π°Π½Π½ΠΎ ΠΏΠΎΠ»ΡΡΠΈΡΠ΅ Π²Π·Π΄ΡΡΠΈΠ΅ ΡΡΠΎΠ³ΠΎ ΠΏΠΎΠΊΡΡΡΠΈΡ.
ΠΠ΅ΡΠ°ΠΌΠΈΡΠ΅ΡΠΊΡΡ ΠΏΠ»ΠΈΡΠΊΡ, Π΄Π»ΠΈΠ½Π½ΡΡ, ΡΡΠΈΠ»ΠΈΠ·ΠΎΠ²Π°Π½Π½ΡΡ ΠΏΠΎΠ΄ Π΄Π΅ΡΠ΅Π²ΠΎ ΡΠΊΠ»Π°Π΄ΡΠ²Π°Π΅ΠΌ ΡΠΎΠ»ΡΠΊΠΎ Π΅Π΄ΠΈΠ½ΡΠΌ ΠΊΠΎΠ½ΡΡΡΠΎΠΌ, ΡΠ°ΠΊ ΠΊΠ°ΠΊ ΠΎΠ½Π° Π½Π΅ ΡΠ°ΡΡΠΈΡΡΠ΅ΡΡΡ ΠΎΡ ΠΏΠ΅ΡΠ΅ΠΏΠ°Π΄ΠΎΠ² Π²Π»Π°ΠΆΠ½ΠΎΡΡΠΈ ΠΈ Π½Π΅ Π±ΠΎΠΈΡΡΡ ΠΏΠ΅ΡΠ΅ΠΏΠ°Π΄ΠΎΠ² ΡΠ΅ΠΌΠΏΠ΅ΡΠ°ΡΡΡΡ.
ΠΠ°ΠΊ ΡΠΊΠ»Π°Π΄ΡΠ²Π°ΡΡ Π»Π°ΠΌΠΈΠ½Π°Ρ Π·Π°Π²ΠΈΡΠΈΡ ΠΎΡ ΡΠ΅Π½Ρ Π»Π°ΠΌΠΈΠ½Π°ΡΠ°. ΠΡΠ»ΠΈ Π²Ρ ΠΏΠΎΠΊΡΠΏΠ°Π΅ΡΠ΅ Π½Π΅Π΄ΠΎΡΠΎΠ³ΠΎΠΉ Π»Π°ΠΌΠΈΠ½Π°Ρ, ΡΠΎ Π΅Π³ΠΎ Π»ΡΡΡΠ΅ ΡΠΊΠ»Π°Π΄ΡΠ²Π°ΡΡ ΠΎΡΠ΄Π΅Π»ΡΠ½ΠΎ Π² ΠΊΠ°ΠΆΠ΄ΠΎΠΌ ΠΏΠΎΠΌΠ΅ΡΠ΅Π½ΠΈΠΈ. ΠΡΠ»ΠΈ Π»Π°ΠΌΠΈΠ½Π°Ρ ΠΏΡΠ΅ΠΌΠΈΡΠΌ ΠΊΠ»Π°ΡΡΠ°, ΡΠΎ Π΅Π³ΠΎ ΠΌΠΎΠΆΠ½ΠΎ ΡΠΊΠ»Π°Π΄ΡΠ²Π°ΡΡ ΠΊΠ°ΠΊ ΡΠ°Π·Π΄Π΅Π»ΡΠ½ΠΎ, ΡΠ°ΠΊ ΠΈ Π΅Π΄ΠΈΠ½ΡΠΌ ΠΊΠΎΠ½ΡΡΡΠΎΠΌ. ΠΡΠΎ ΡΠ²ΡΠ·Π°Π½ΠΎ Ρ ΡΠ΅ΠΌ, ΡΡΠΎ Π΄ΠΎΡΠΎΠ³ΠΈΠ΅ Π»Π°ΠΌΠΈΠ½Π°ΡΡ Π±ΠΎΠ»Π΅Π΅ ΠΏΡΠΎΡΠ½ΡΠ΅ ΠΈ Π±ΠΎΠ»Π΅Π΅ Π²Π»Π°Π³ΠΎΡΡΠΎΠΉΠΊΠΈΠ΅, ΠΏΠΎΡΡΠΎΠΌΡ Π²Π΅ΡΠΎΡΡΠ½ΠΎΡΡΡ ΠΈΡ Π²Π·Π΄ΡΡΠΈΡ ΠΎΡΠ΅Π½Ρ ΠΌΠ°Π»Π°.
Π’Π΅ΠΏΠ΅ΡΡ Π΄Π°Π²Π°ΠΉΡΠ΅ ΠΏΠΎΠ³ΠΎΠ²ΠΎΡΠΈΠΌ ΠΎ Π²ΠΈΠ΄Π°Ρ Π½Π°ΠΏΡΠ°Π²Π»Π΅Π½ΠΈΡ ΡΠ°ΡΠΊΠ»Π°Π΄ΠΊΠΈ, ΡΠΎ Π΅ΡΡΡ ΠΎ Π½Π°ΠΏΡΠ°Π²Π»Π΅Π½ΠΈΠΈ ΡΠ»Π΅ΠΌΠ΅Π½ΡΠΎΠ² ΠΏΠΎ Π΄Π»ΠΈΠ½Π΅.
ΠΡΠ΄Π΅Π»ΡΡΡ 3 ΠΎΡΠ½ΠΎΠ²Π½ΡΡ Π½Π°ΠΏΡΠ°Π²Π»Π΅Π½ΠΈΡ:
— ΠΏΠΎ ΡΠ²Π΅ΡΡ;
— ΠΏΠΎ Ρ ΠΎΠ΄Ρ Π΄Π²ΠΈΠΆΠ΅Π½ΠΈΡ;
ΠΡΠΈ ΡΠ°ΡΠΊΠ»Π°Π΄ΠΊΠ΅ ΠΏΠΎ ΡΠ²Π΅ΡΡ ΠΏΡΠΎΠ΄ΠΎΠ»ΡΠ½ΡΠ΅ ΡΡΡΠΊΠΈ ΡΠ»Π΅ΠΌΠ΅Π½ΡΠΎΠ² Π½Π°ΠΏΠΎΠ»ΡΠ½ΠΎΠ³ΠΎ ΠΏΠΎΠΊΡΡΡΠΈΡ Ρ ΠΎΡΠΎΡΠΎ ΠΎΡΠ²Π΅ΡΠ΅Π½Ρ, ΠΈ ΠΎΡ ΡΡΠΎΠ³ΠΎ ΠΎΠ½ΠΈ ΡΡΠ°Π½ΠΎΠ²ΡΡΡΡ ΠΌΠ΅Π½Π΅Π΅ Π·Π°ΠΌΠ΅ΡΠ½ΡΠΌΠΈ. ΠΠΎΡΡΠΎΠΌΡ ΠΏΡΠΈ ΡΠΊΠ»Π°Π΄ΠΊΠ΅ ΠΏΠΎΠΊΡΡΡΠΈΡ Π² ΠΏΠΎΠΌΠ΅ΡΠ΅Π½ΠΈΠΈ Ρ ΠΎΠΊΠ½ΠΎΠΌ, ΡΠ»Π΅ΠΌΠ΅Π½ΡΡ Π½Π΅ΠΎΠ±Ρ ΠΎΠ΄ΠΈΠΌΠΎ ΡΠ°ΡΠΏΠΎΠ»Π°Π³Π°ΡΡ Π’ΠΠΠ¬ΠΠ ΠΏΠΎ ΡΠ²Π΅ΡΡ.
ΠΡΠΈ ΡΠ°ΡΠΊΠ»Π°Π΄ΠΊΠ΅ ΠΏΠΎ Ρ
ΠΎΠ΄Ρ Π΄Π²ΠΈΠΆΠ΅Π½ΠΈΡ Π²Ρ ΠΈΠ΄Π΅ΡΠ΅ Π²Π΄ΠΎΠ»Ρ ΠΏΠΎ ΡΡΡΠΊΠ°ΠΌ ΡΠ»Π΅ΠΌΠ΅Π½ΡΠΎΠ², Π° Π½Π΅ ΠΏΠΎΠΏΠ΅ΡΠ΅ΠΊ, Π±Π»Π°Π³ΠΎΠ΄Π°ΡΡ ΡΡΠΎΠΌΡ ΠΏΠΎΠΊΡΡΡΠΈΠ΅ ΠΏΡΠΎΡΠ»ΡΠΆΠΈΡ Π΄ΠΎΠ»ΡΡΠ΅.
ΠΠ°ΠΆΠ½ΠΎ, Π΅ΡΠ»ΠΈ Π²Ρ ΡΠΊΠ»Π°Π΄ΡΠ²Π°Π΅ΡΠ΅ ΠΏΠΎΠΊΡΡΡΠΈΠ΅ Π΅Π΄ΠΈΠ½ΡΠΌ ΠΊΠΎΠ½ΡΡΡΠΎΠΌ, ΡΠΎ Π½Π΅ΠΎΠ±Ρ ΠΎΠ΄ΠΈΠΌΠΎ ΡΠΊΠ»Π°Π΄ΡΠ²Π°ΡΡ ΠΏΠΎΠΊΡΡΡΠΈΠ΅ ΠΏΠΎ ΡΠ²Π΅ΡΡ, ΡΠ°ΠΊ ΠΊΠ°ΠΊ ΠΏΠ»ΠΎΡΠ°Π΄Ρ Π²ΡΠ΅Ρ ΠΊΠΎΠΌΠ½Π°Ρ Ρ ΠΎΠΊΠ½Π°ΠΌΠΈ, Π³ΠΎΡΠ°Π·Π΄ΠΎ Π±ΠΎΠ»ΡΡΠ΅ ΠΏΠ»ΠΎΡΠ°Π΄ΠΈ Π²ΡΠ΅Ρ ΠΊΠΎΡΠΈΠ΄ΠΎΡΠΎΠ², ΠΊΠΎΡΠΎΡΡΠ΅ Π΅ΡΡΡ Π² ΠΊΠ²Π°ΡΡΠΈΡΠ΅.
ΠΠ΄Π½Π°ΠΊΠΎ, Π² ΠΏΠΎΠΌΠ΅ΡΠ΅Π½ΠΈΡΡ Ρ Π±ΠΎΠ»ΡΡΠΎΠΉ ΠΏΡΠΎΡ ΠΎΠ΄ΠΈΠΌΠΎΡΡΡΡ, Π½Π°ΠΏΡΠΈΠΌΠ΅Ρ Π² ΠΊΠΎΡΠΈΠ΄ΠΎΡΠ°Ρ ΠΎΡΠΈΡΠΎΠ², ΠΏΠΎΠΊΡΡΡΠΈΠ΅ Π½Π΅ΠΎΠ±Ρ ΠΎΠ΄ΠΈΠΌΠΎ ΡΠΊΠ»Π°Π΄ΡΠ²Π°ΡΡ Π’ΠΠΠ¬ΠΠ ΠΏΠΎ Ρ ΠΎΠ΄Ρ Π΄Π²ΠΈΠΆΠ΅Π½ΠΈΡ, Π² ΠΏΡΠΎΡΠΈΠ²Π½ΠΎΠΌ ΡΠ»ΡΡΠ°Π΅ ΠΎΠ½ΠΎ ΠΎΡΠ΅Π½Ρ Π±ΡΡΡΡΠΎ ΠΈΠ·Π½ΠΎΡΠΈΡΡΡ.
Π Π°ΡΠΊΠ»Π°Π΄ΠΊΠ° ΠΏΠΎ Π΄ΠΈΠ°Π³ΠΎΠ½Π°Π»ΠΈ, ΡΡΠΎ ΡΠ°ΡΠΊΠ»Π°Π΄ΠΊΠ° ΠΊΠΎΡΠΎΡΠ°Ρ ΠΈΠ΄Π΅Ρ Π² ΡΠ°Π·ΡΠ΅Π· Ρ ΠΎΡΠ²Π΅ΡΠ΅Π½ΠΈΠ΅ΠΌ ΠΈ Ρ ΠΎΠ΄ΠΎΠΌ Π΄Π²ΠΈΠΆΠ΅Π½ΠΈΡ.
Π’Π΅ΠΏΠ΅ΡΡ ΠΏΠΎΠ³ΠΎΠ²ΠΎΡΠΈΠΌ ΠΎ ΡΠ°ΡΠΏΠΎΠ»ΠΎΠΆΠ΅Π½ΠΈΠΈ ΡΠ»Π΅ΠΌΠ΅Π½ΡΠΎΠ² ΠΎΡΠ½ΠΎΡΠΈΡΠ΅Π»ΡΠ½ΠΎ Π΄ΡΡΠ³ Π΄ΡΡΠ³Π°:
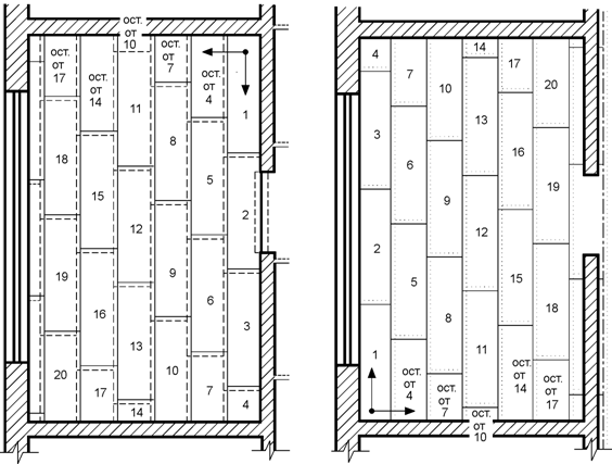
1 ΡΠΏΠΎΡΠΎΠ±: ΠΊΠ°ΠΆΠ΄ΡΠΉ ΠΏΠΎΡΠ»Π΅Π΄ΡΡΡΠΈΠΉ ΡΡΠ΄ ΡΠ΄Π²ΠΈΠ³Π°Π΅ΡΡΡ ΠΎΡΠ½ΠΎΡΠΈΡΠ΅Π»ΡΠ½ΠΎ ΠΏΡΠ΅Π΄ΡΠ΄ΡΡΠ΅Π³ΠΎ ΡΡΠ΄Π° Π½Π° ΡΠΈΡΠΈΠ½Ρ ΡΠ»Π΅ΠΌΠ΅Π½ΡΠ° Π½Π°ΠΏΠΎΠ»ΡΠ½ΠΎΠ³ΠΎ ΠΏΠΎΠΊΡΡΡΠΈΡ. ΠΡΠΎΡ ΡΠΏΠΎΡΠΎΠ± ΠΏΠ»ΠΎΡ
ΡΠ΅ΠΌ, ΡΡΠΎ ΠΏΠΎΠΊΡΡΡΠΈΠ΅ Π½Π°Ρ
ΠΎΠ΄ΠΈΡΡΡ ΠΏΡΠ°ΠΊΡΠΈΡΠ΅ΡΠΊΠΈ Π±Π΅Π· ΠΎΠ±Π²ΡΠ·ΠΊΠΈ, ΠΈ ΠΎΠ½ΠΎ Π±ΡΠ΄Π΅Ρ Π½Π΅ ΠΏΡΠΎΡΠ½ΡΠΌ ΠΈ Π½Π΅ Π΄ΠΎΠ»Π³ΠΎΠ²Π΅ΡΠ½ΡΠΌ. ΠΡΠΈ ΡΠ°ΠΊΠΎΠΉ ΡΠ°ΡΠΊΠ»Π°Π΄ΠΊΠ΅ ΠΌΡ ΠΏΠΎΠ»ΡΡΠ°Π΅ΠΌ ΡΡΠΊΠΎ Π²ΡΡΠ°ΠΆΠ΅Π½Π½ΡΠ΅ Π΄ΠΈΠ°Π³ΠΎΠ½Π°Π»ΠΈ, Π² ΠΊΠΎΡΠΎΡΡΡ
ΠΏΠΎΠ΄ ΡΠ³Π»ΠΎΠΌ ΠΈΠ΄ΡΡ ΡΠ²Ρ. ΠΡΠΈ Π΄ΠΈΠ°Π³ΠΎΠ½Π°Π»ΠΈ ΠΊΠΎΠ½ΡΠ»ΠΈΠΊΡΡΡΡ ΠΈ ΡΠΎ ΡΠ²Π΅ΡΠΎΠΌ ΠΈ Ρ Π½Π°ΠΏΡΠ°Π²Π»Π΅Π½ΠΈΠ΅ΠΌ Π΄Π²ΠΈΠΆΠ΅Π½ΠΈΡ ΠΈ Ρ ΠΎΠ±ΡΡΠ°Π½ΠΎΠ²ΠΊΠΎΠΉ.
2 ΡΠΏΠΎΡΠΎΠ±: ΠΊΠ»Π°ΡΡΠΈΡΠ΅ΡΠΊΠΈΠΉ, ΠΊΠ°ΠΆΠ΄ΡΠΉ ΡΠ»Π΅Π΄ΡΡΡΠΈΠΉ ΡΡΠ΄ ΡΠΌΠ΅ΡΠ°Π΅ΡΡΡ ΠΎΡΠ½ΠΎΡΠΈΡΠ΅Π»ΡΠ½ΠΎ ΠΏΡΠ΅Π΄ΡΠ΄ΡΡΠ΅Π³ΠΎ Π½Π° ΠΏΠΎΠ»ΠΎΠ²ΠΈΠ½Ρ ΡΠ»Π΅ΠΌΠ΅Π½ΡΠ° ΠΏΠΎΠΊΡΡΡΠΈΡ. ΠΡΠΈ Π΄Π°Π½Π½ΠΎΠΌ ΡΠΏΠΎΡΠΎΠ±Π΅ ΠΎΠ±Π²ΡΠ·ΠΊΠ° ΡΠ»Π΅ΠΌΠ΅Π½ΡΠΎΠ² ΡΠ²Π»ΡΠ΅ΡΡΡ ΠΌΠ°ΠΊΡΠΈΠΌΠ°Π»ΡΠ½ΠΎΠΉ, ΡΠ°ΠΊΠΎΠ΅ ΠΏΠΎΠΊΡΡΡΠΈΠ΅ ΡΠ²Π»ΡΠ΅ΡΡΡ ΠΎΡΠ΅Π½Ρ ΠΏΡΠΎΡΠ½ΡΠΌ.
3 ΡΠΏΠΎΡΠΎΠ±: ΠΏΠ°Π»ΡΠ±Π½ΡΠΉ, ΠΊΠ°ΠΆΠ΄ΡΠΉ ΠΏΠΎΡΠ»Π΅Π΄ΡΡΡΠΈΠΉ ΡΡΠ΄ ΡΠΌΠ΅ΡΠ°Π΅ΡΡΡ ΠΎΡΠ½ΠΎΡΠΈΡΠ΅Π»ΡΠ½ΠΎ ΠΏΡΠ΅Π΄ΡΠ΄ΡΡΠ΅Π³ΠΎ Π½Π° 1/3 ΡΠ»Π΅ΠΌΠ΅Π½ΡΠ°.
Π Π°ΡΠΏΡΠ΅Π΄Π΅Π»ΡΠΉΡΠ΅ Π½Π°ΠΏΠΎΠ»ΡΠ½ΡΠ΅ ΠΏΠΎΠΊΡΡΡΠΈΡ ΠΏΡΠ°Π²ΠΈΠ»ΡΠ½ΠΎ ΠΈ Π²Ρ ΠΏΠΎΠ»ΡΡΠΈΡΠ΅ ΠΊΡΠ°ΡΠΈΠ²ΡΠΉ, Π³Π°ΡΠΌΠΎΠ½ΠΈΡΠ½ΡΠΉ ΠΈ Π΄ΠΎΠ»Π³ΠΎΠ²Π΅ΡΠ½ΡΠΉ ΠΏΠΎΠ». Π ΡΠΏΠ΅ΡΠΈΠ°Π»ΠΈΡΡΡ ΠΊΠΎΠΌΠΏΠ°Π½ΠΈΠΈ «Π’Π΅Ρ Π‘ΡΡΠΎΠΉ» ΠΏΠΎΠΌΠΎΠ³ΡΡ ΠΠ°ΠΌ Π² ΡΡΠΎΠΌ.
ΠΠ°ΠΊ ΠΏΡΠ°Π²ΠΈΠ»ΡΠ½ΠΎ ΠΊΠ»Π°ΡΡΡ Π»Π°ΠΌΠΈΠ½Π°Ρ: Π²Π΄ΠΎΠ»Ρ ΠΈΠ»ΠΈ ΠΏΠΎΠΏΠ΅ΡΠ΅ΠΊ?
27.03.2018
Π‘ΠΎΠ³Π»Π°ΡΠ½ΠΎ ΡΡΠ²Π΅ΡΠΆΠ΄Π΅Π½ΠΈΡ ΠΈΠ·Π³ΠΎΡΠΎΠ²ΠΈΡΠ΅Π»Π΅ΠΉ Π·Π° ΡΡΠ΅Ρ Π·Π°ΠΌΠΊΠΎΠ²ΠΎΠΉ ΡΠΈΡΡΠ΅ΠΌΡ ΡΠΎΠ΅Π΄ΠΈΠ½Π΅Π½ΠΈΠΉ Π»Π°ΠΌΠΈΠ½Π°Ρ ΡΠΎΠ±ΠΈΡΠ°Π΅ΡΡΡ Π»Π΅Π³ΠΊΠΎ ΠΈ Π±ΡΡΡΡΠΎ. ΠΠΎ ΡΡΡΠ΅ΡΡΠ²ΡΠ΅Ρ ΠΏΡΠΎΠ±Π»Π΅ΠΌΠ°, Π²ΠΎΠ·Π½ΠΈΠΊΠ°ΡΡΠ°Ρ ΠΏΡΠΈ Π½Π°ΡΠ°Π»Π΅ ΡΠ°Π±ΠΎΡΡ: ΠΊΠ°ΠΊ ΠΏΡΠ°Π²ΠΈΠ»ΡΠ½ΠΎ ΠΊΠ»Π°ΡΡΡ Π»Π°ΠΌΠΈΠ½Π°Ρ Π²Π΄ΠΎΠ»Ρ ΠΈΠ»ΠΈ ΠΏΠΎΠΏΠ΅ΡΠ΅ΠΊ ΠΊΠΎΠΌΠ½Π°ΡΡ? Π Π΅ΡΠΈΡΡ ΡΡΠΎΡ Π²ΠΎΠΏΡΠΎΡ ΠΌΠΎΠΆΠ½ΠΎ, ΠΈΡΠΏΠΎΠ»ΡΠ·ΡΡ ΠΎΠΏΡΠ΅Π΄Π΅Π»Π΅Π½Π½ΡΠ΅ ΡΠ΅Ρ Π½ΠΎΠ»ΠΎΠ³ΠΈΠΈ.
ΠΠ°ΠΊ ΠΏΡΠ°Π²ΠΈΠ»ΡΠ½ΠΎ ΡΠΊΠ»Π°Π΄ΡΠ²Π°ΡΡ Π»Π°ΠΌΠΈΠ½Π°Ρ
ΠΡΠ±ΡΠ°Π² ΡΠ²Π΅Ρ ΠΈ ΡΠ΅ΠΊΡΡΡΡΡ ΠΌΠ°ΡΠ΅ΡΠΈΠ°Π»Π° Π΄Π»Ρ ΡΠΊΠ»Π°Π΄ΠΊΠΈ Π½Π° ΠΏΠΎΠ» Π² ΠΊΠ²Π°ΡΡΠΈΡΠ΅ ΠΈΠ»ΠΈ Π΄ΠΎΠΌΠ΅, Π²Π»Π°Π΄Π΅Π»Π΅Ρ ΠΎΠ±ΡΡΠ½ΠΎ Π½Π΅ Π΄ΡΠΌΠ°Π΅Ρ ΠΎ Π½Π°ΠΏΡΠ°Π²Π»Π΅Π½ΠΈΠΈ ΡΠΊΠ»Π°Π΄ΠΊΠΈ Π»Π°ΠΌΠΈΠ½Π°ΡΠ°.
ΠΡΠ»ΠΈ Π²Π΅ΡΠΈΡΡ ΡΠΏΠ΅ΡΠΈΠ°Π»ΠΈΡΡΠ°ΠΌ, ΠΎΡ ΡΠΎΠ³ΠΎ, Π² ΠΊΠ°ΠΊΠΎΠΌ Π½Π°ΠΏΡΠ°Π²Π»Π΅Π½ΠΈΠΈ ΡΠ»ΠΎΠΆΠ΅Π½ Π»Π°ΠΌΠΈΠ½Π°Ρ, Π·Π°Π²ΠΈΡΠΈΡ Π΅Π³ΠΎ Π΄ΠΎΠ»Π³ΠΎΠ²Π΅ΡΠ½ΠΎΡΡΡ, ΡΡΠΎΠΉΠΊΠΎΡΡΡ ΠΊ ΠΈΠ·Π½Π°ΡΠΈΠ²Π°Π½ΠΈΡ. ΠΡΠ°Π²ΠΈΠ»ΡΠ½Π°Ρ ΡΠΊΠ»Π°Π΄ΠΊΠ° Π»Π°ΠΌΠΈΠ½Π°ΡΠ° ΡΠΎΠ·Π΄Π°ΡΡ ΠΎΠΏΡΠ΅Π΄Π΅Π»Π΅Π½Π½ΡΠΉ Π΄Π΅ΠΊΠΎΡΠ°ΡΠΈΠ²Π½ΡΠΉ Π°ΠΊΡΠ΅Π½Ρ. Π’Π°ΠΊΠΎΠΉ Π»Π°ΠΌΠΈΠ½Π°Ρ ΠΎΡΠ½ΠΎΡΠΈΡΡΡ ΠΊ ΠΊΠ»Π°ΡΡΡ Π΄Π»ΠΈΠ½Π½ΡΡ
ΡΠΈΡΡΠΎΠ²ΡΡ
Π½Π°ΠΏΠΎΠ»ΡΠ½ΡΡ
ΠΌΠ°ΡΠ΅ΡΠΈΠ°Π»ΠΎΠ², Ρ.ΠΊ. Π΅Π³ΠΎ Π΄Π»ΠΈΠ½Π° Π±ΠΎΠ»ΡΡΠ΅ ΡΠΈΡΠΈΠ½Ρ Π² 4,5 ΡΠ°Π·Π°. Π‘ΡΡΠ΅ΡΡΠ²ΡΠ΅Ρ ΠΎΠ³ΡΠ°Π½ΠΈΡΠ΅Π½ΠΈΠ΅ Π½Π° Π²Π°ΡΠΈΠ°Π½ΡΡ ΡΠΊΠ»Π°Π΄ΠΊΠΈ Π»Π°ΠΌΠΈΠ½ΠΈΡΠΎΠ²Π°Π½Π½ΠΎΠ³ΠΎ ΠΏΠ°ΡΠΊΠ΅ΡΠ°.
ΠΠΎ ΡΠ²Π΅ΡΡ (ΠΎΡ ΠΎΠΊΠ½Π°)
ΠΠΎ ΡΠ΅ΠΊΠΎΠΌΠ΅Π½Π΄Π°ΡΠΈΠΈ ΠΈΠ·Π³ΠΎΡΠΎΠ²ΠΈΡΠ΅Π»Π΅ΠΉ Π½Π°ΠΏΠΎΠ»ΡΠ½ΡΡ ΠΏΠΎΠΊΡΡΡΠΈΠΉ ΠΈ ΠΌΠ°ΡΡΠ΅ΡΠΎΠ² ΡΠ°ΠΊΠΎΠΉ ΡΠΏΠΎΡΠΎΠ± ΡΠΊΠ»Π°Π΄ΠΊΠΈ ΡΠ²Π»ΡΠ΅ΡΡΡ ΠΎΠΏΡΠΈΠΌΠ°Π»ΡΠ½ΡΠΌ. ΠΡΠ»ΠΈ Π² ΠΊΠ²Π°ΡΡΠΈΡΠ°Ρ ΡΠΎ ΡΡΠ°Π½Π΄Π°ΡΡΠ½ΠΎΠΉ ΠΏΠ»Π°Π½ΠΈΡΠΎΠ²ΠΊΠΎΠΉ ΡΠ»ΠΎΠΆΠΈΡΡ Π»Π°ΠΌΠΈΠ½Π°Ρ ΡΠ°ΠΊΠΈΠΌ ΠΌΠ΅ΡΠΎΠ΄ΠΎΠΌ, ΡΠΎ ΠΏΠΎΠ»ΡΡΠΈΡΡΡ Π³Π»Π°Π΄ΠΊΠ°Ρ ΠΌΠΎΠ½ΠΎΠ»ΠΈΡΠ½Π°Ρ ΠΏΠΎΠ²Π΅ΡΡ Π½ΠΎΡΡΡ Ρ Π΅Π΄Π²Π° Π·Π°ΠΌΠ΅ΡΠ½ΡΠΌΠΈ ΡΡΡΠΊΠ°ΠΌΠΈ
ΠΠΎΠ΄ΠΎΠ±Π½Π°Ρ ΡΠ±ΠΎΡΠΊΠ° ΠΈΡΠΏΠΎΠ»ΡΠ·ΡΠ΅ΡΡΡ Π΄Π»Ρ ΠΌΠ°ΡΠ΅ΡΠΈΠ°Π»ΠΎΠ², ΠΈΠΌΠ΅ΡΡΠΈΡ Π΄Π²ΡΡ ΡΡΠΎΡΠΎΠ½Π½ΡΡ ΡΠ°ΡΠΊΡ. ΠΠΎΠ²Π΅ΡΡ Π½ΠΎΡΡΡ Π½Π°ΠΏΠΎΠΌΠΈΠ½Π°Π΅Ρ Π΄ΠΎΡΠ°ΡΡΠΉ ΠΏΠΎΠ» Π² ΠΊΠ°Π½ΡΡΠΈ ΠΈΠ»ΠΈ ΡΡΠ°ΡΠΈΠ½Π½ΠΎΠΌ ΡΡΡΡΠΊΠΎΠΌ ΡΡΠΈΠ»Π΅. ΠΡΠ»ΠΈ Π½Π° Π»Π°ΠΌΠΈΠ½Π°ΡΠ΅ Π΅ΡΡΡ ΡΠ΅ΠΊΡΡΡΡΠ½ΠΎΠ΅ ΡΠΈΡΠ½Π΅Π½ΠΈΠ΅, ΡΡΠΎ Π΅ΡΠ΅ Π±ΠΎΠ»ΡΡΠ΅ ΠΏΠΎΠ΄ΡΠ΅ΡΠΊΠ½Π΅Ρ ΡΠ°ΠΊΡΡΡΡ ΠΈΠ»ΠΈ ΠΏΡΠΈΠ΄Π°ΡΡ ΡΠΎΡΡΠ°ΡΠ΅Π½Π½ΡΠΉ Π²ΠΈΠ΄ ΠΏΠΎΠ²Π΅ΡΡ Π½ΠΎΡΡΠΈ ΠΏΠΎΠ»Π°.
ΠΠ»Ρ ΠΌΠΎΠ½ΡΠ°ΠΆΠ° ΠΏΠΎ ΡΠ²Π΅ΡΡ ΠΏΠΎΠ΄Ρ
ΠΎΠ΄ΠΈΡ Π»Π°ΠΌΠΈΠ½Π°Ρ 32-34 ΠΊΠ»Π°ΡΡΠ°.
ΠΠ°ΠΌΠΈΠ½Π°Ρ 31 ΠΊΠ»Π°ΡΡΠ° Π½ΡΠΆΠ½ΠΎ ΠΈΡΠΏΠΎΠ»ΡΠ·ΠΎΠ²Π°ΡΡ ΠΎΡΡΠΎΡΠΎΠΆΠ½ΠΎ ΠΈΠ·-Π·Π° Π½ΠΈΠ·ΠΊΠΎΠΉ ΠΈΠ·Π½ΠΎΡΠΎΡΡΠΎΠΉΠΊΠΎΡΡΠΈ Π½Π° ΡΡΡΠΊΠ°Ρ
, Π° ΡΡΠΎ ΠΏΡΠΈΠ²ΠΎΠ΄ΠΈΡ ΠΊ Π±ΡΡΡΡΠΎΠΌΡ ΡΡΠΈΡΠ°Π½ΠΈΡ ΠΈ ΠΏΠΎΡΠ΅ΡΠ΅ Π²Π½Π΅ΡΠ½Π΅Π³ΠΎ Π²ΠΈΠ΄Π°.
ΠΠΎΠΏΠ΅ΡΠ΅ΠΊ ΡΠ²Π΅ΡΠ°
Π’Π°ΠΊΠΎΠΉ ΠΌΠ΅ΡΠΎΠ΄ ΡΠ±ΠΎΡΠΊΠΈ ΠΎΡΡΡΠ΅ΡΡΠ²Π»ΡΡΡ ΠΏΠ΅ΡΠΏΠ΅Π½Π΄ΠΈΠΊΡΠ»ΡΡΠ½ΠΎ ΠΎΠΊΠ½Ρ ΠΈ ΠΏΠ°ΡΠ°Π»Π»Π΅Π»ΡΠ½ΠΎ Π΄Π»ΠΈΠ½Π½ΠΎΠΉ ΡΡΠ΅Π½Π΅. ΠΡΠΏΠΎΠ»ΡΠ·ΡΠ΅ΡΡΡ Π»Π°ΠΌΠΈΠ½Π°Ρ 32-34 ΠΊΠ»Π°ΡΡΠ°. Π’Π°ΠΊΠΎΠΉ ΠΌΠΎΠ½ΡΠ°ΠΆ ΠΏΠΎΠ·Π²ΠΎΠ»ΡΠ΅Ρ ΡΠ΄Π΅Π»Π°ΡΡ Π²ΠΈΠ·ΡΠ°Π»ΡΠ½ΠΎΠ΅ ΡΠ²Π΅Π»ΠΈΡΠ΅Π½ΠΈΠ΅ ΠΏΠΎΠΌΠ΅ΡΠ΅Π½ΠΈΡ. ΠΠ°ΡΡΠΈΠ» Π»Π°ΠΌΠΈΠ½Π°ΡΠ° ΠΏΠΎΠΏΠ΅ΡΠ΅ΠΊ ΠΊΠΎΠΌΠ½Π°ΡΡ ΠΏΠΎΠ΄ΡΠ΅ΡΠΊΠΈΠ²Π°Π΅Ρ:
- ΡΠ΅ΠΊΡΡΡΡΡ Π»Π°ΠΌΠΈΠ½Π°ΡΠ° Β«Π² ΡΠ΅Π³ΠΈΡΡΡΒ» (Π½Π΅ΡΠΎΠ²Π½Π°Ρ ΡΠΈΡΠ½Π΅Π½Π½Π°Ρ, Π±ΡΠ³ΡΠΈΡΡΠ°Ρ ΠΏΠΎΠ²Π΅ΡΡ Π½ΠΎΡΡΡ, ΠΈΠΌΠΈΡΠΈΡΡΡΡΠ°Ρ Π΄ΡΠ΅Π²Π΅ΡΠΈΠ½Ρ), Β«ΠΏΠΎΠ΄ Ρ ΡΠΎΠΌΒ» (ΠΏΠΎΠΏΠ΅ΡΠ΅ΠΌΠ΅Π½Π½Π°Ρ ΡΠΊΠ»Π°Π΄ΠΊΠ° Π³Π»ΡΠ½ΡΠ΅Π²ΡΡ ΠΈ ΠΌΠ°ΡΠΎΠ²ΡΡ ΠΏΠΎΠ»ΠΎΡ), Β«Π±ΡΠ°ΡΒ» (ΠΈΠΌΠΈΡΠ°ΡΠΈΡ Π΄ΡΠ΅Π²Π΅ΡΠΈΠ½Ρ, ΠΏΠΎΡΠ»Π΅ ΠΎΠ±ΡΠ°Π±ΠΎΡΠΊΠΈ ΠΌΠ΅ΡΠ°Π»Π»ΠΈΡΠ΅ΡΠΊΠΎΠΉ ΡΠ΅ΡΠΊΠΎΠΉ) ΠΈ Ρ. Π΄.;
- U- ΠΈΠ»ΠΈ V-ΠΎΠ±ΡΠ°Π·Π½ΡΡ ΡΠ°ΡΠΊΡ Ρ 2-Ρ ΠΈΠ»ΠΈ 4-Ρ ΡΡΠΎΡΠΎΠ½;
- 3D ΡΠΈΡΡΠ½ΠΎΠΊ.
ΠΡΠΈ ΠΏΠ΅ΡΠΏΠ΅Π½Π΄ΠΈΠΊΡΠ»ΡΡΠ½ΠΎΠΉ ΡΠΊΠ»Π°Π΄ΠΊΠ΅ ΠΏΠ°Π΄Π°ΡΡΠΈΠΉ ΡΠ²Π΅Ρ Π²ΡΠ΄Π΅Π»ΡΠ΅Ρ ΡΡΡΠΊΠΈ ΠΌΠ΅ΠΆΠ΄Ρ Π»Π°ΠΌΠ΅Π»ΡΠΌΠΈ, ΠΈΡ ΡΠ°ΠΊΡΡΡΡ, ΠΏΡΠΈΠ΄Π°Π΅Ρ ΠΏΠΎΠ²Π΅ΡΡ Π½ΠΎΡΡΠΈ ΠΎΠ±ΡΠ΅ΠΌ. ΠΠΎΠΌΠ½Π°ΡΡ Ρ ΡΠ°ΠΊΠΈΠΌ ΡΠ°ΡΠΏΠΎΠ»ΠΎΠΆΠ΅Π½ΠΈΠ΅ΠΌ Π»Π°ΠΌΠΈΠ½Π°ΡΠ° ΠΎΠ±Π»Π°Π΄Π°ΡΡ ΠΎΡΠΎΠ±ΡΠΌ ΡΠ°ΡΠΌΠΎΠΌ, ΡΠ°ΠΊ ΠΊΠ°ΠΊ Π³Π»ΡΠ±ΠΎΠΊΠΎΠ΅ ΡΠΈΡΠ½Π΅Π½ΠΈΠ΅ ΠΈ ΠΎΡΡΠ²Π΅Ρ ΠΏΡΠΈΠ΄Π°ΡΡ Π΅ΠΌΡ ΠΆΠΈΠ²ΡΡ ΠΈΠ³ΡΡ ΡΠ²Π΅ΡΠ° ΠΈ ΡΠ΅Π½ΠΈ.
Π£ ΠΏΠΎΠΏΡΠ»ΡΡΠ½ΡΡ
ΠΏΡΠΎΠΈΠ·Π²ΠΎΠ΄ΠΈΡΠ΅Π»Π΅ΠΉ Π΅ΡΡΡ ΠΊΠΎΠ»Π»Π΅ΠΊΡΠΈΠΈ, ΡΠΎΡΠ΅ΡΠ°ΡΡΠΈΠ΅ Π² ΡΠ΅Π±Π΅ ΡΠ°Π·Π»ΠΈΡΠ½ΡΠΉ Π΄Π΅ΠΊΠΎΡ ΠΈ ΡΠ°Π·ΠΌΠ΅Ρ Π»Π°ΠΌΠΈΠ½ΠΈΡΠΎΠ²Π°Π½Π½ΠΎΠΉ Π΄ΠΎΡΠΊΠΈ.
ΠΠΏΡΡΠ½ΡΠ΅ ΠΏΡΠΎΡΠ΅ΡΡΠΈΠΎΠ½Π°Π»ΡΠ½ΡΠ΅ ΠΌΠ°ΡΡΠ΅ΡΠ° ΡΠΎΠ±ΠΈΡΠ°ΡΡ ΡΠ΅ΠΊΡΡΡΡΠΈΡΠΎΠ²Π°Π½Π½ΡΠ΅ Π»Π°ΠΌΠ΅Π»ΠΈ ΡΠ°Π·Π½ΠΎΠ³ΠΎ ΡΠΎΡΠΌΠ°ΡΠ° Π² Π³Π°ΡΠΌΠΎΠ½ΠΈΡΠ½ΡΠΉ ΠΈ ΡΡΡΠ΅ΠΊΡΠ½ΡΠΉ ΠΏΠΎΠ».
ΠΠΎ Ρ ΠΎΠ΄Ρ Π²Π΄ΠΎΠ»Ρ Π΄Π²ΠΈΠΆΠ΅Π½ΠΈΡ
Π ΠΏΡΠΎΡ ΠΎΠ΄Π½ΡΡ ΠΊΠΎΠΌΠ½Π°ΡΠ°Ρ (ΠΊΠΎΡΠΈΠ΄ΠΎΡ, ΠΏΡΠΈΡ ΠΎΠΆΠ°Ρ, Ρ ΠΎΠ»Π») ΠΈΠ»ΠΈ Π² ΠΏΠΎΠΌΠ΅ΡΠ΅Π½ΠΈΡΡ Ρ ΠΎΠΏΡΠ΅Π΄Π΅Π»Π΅Π½Π½ΡΠΌ Π½Π°ΠΏΡΠ°Π²Π»Π΅Π½ΠΈΠ΅ΠΌ Π½Π°Π³ΡΡΠ·ΠΊΠΈ (ΠΊΠ°Π±ΠΈΠ½Π΅Ρ, ΠΊΡΡ Π½Ρ) Π»Π°ΠΌΠΈΠ½Π°Ρ Π½ΡΠΆΠ½ΠΎ ΠΊΠ»Π°ΡΡΡ Π²Π΄ΠΎΠ»Ρ ΠΈΠ½ΡΠ΅Π½ΡΠΈΠ²Π½ΠΎΠ³ΠΎ ΠΏΠ΅ΡΠ΅ΠΌΠ΅ΡΠ΅Π½ΠΈΡ. ΠΡΠΎΡ Π²Π°ΡΠΈΠ°Π½Ρ Π½Π΅ΠΎΠ±Ρ ΠΎΠ΄ΠΈΠΌ, ΡΡΠΎΠ±Ρ Π»Π°ΠΌΠ΅Π»ΠΈ Π½Π° ΡΡΡΠΊΠ°Ρ ΠΌΠ΅Π½ΡΡΠ΅ ΡΡΠΈΡΠ°Π»ΠΈΡΡ. Π ΡΡΠΎΠΌ ΡΠ»ΡΡΠ°Π΅ Π»Π°ΠΌΠΈΠ½Π°Ρ 31-34 ΠΊΠ»Π°ΡΡΠ° Π±ΡΠ΄Π΅Ρ ΡΠ»ΡΠΆΠΈΡΡ Π΄ΠΎΠ»Π³ΠΎ.
Π‘ΠΎΠ²Π΅Ρ! ΠΠ»Π°ΡΡΡ Π»Π°ΠΌΠΈΠ½ΠΈΡΠΎΠ²Π°Π½Π½ΠΎΠ΅ ΠΏΠΎΠΊΡΡΡΠΈΠ΅ ΠΏΠΎΠΏΠ΅ΡΠ΅ΠΊ Π΄Π²ΠΈΠΆΠ΅Π½ΠΈΡ Π½Π΅Π»ΡΠ·Ρ, ΡΠ°ΠΊ ΠΊΠ°ΠΊ ΠΎΡΠ½ΠΎΠ²Π½Π°Ρ Π»Π°ΠΌΠ΅Π»Ρ ΡΡΠΈΡΠ°Π΅ΡΡΡ ΠΌΠ΅Π΄Π»Π΅Π½Π½Π΅Π΅ ΠΊΡΠ°Π΅Π², ΡΡΠΎ Π²Π΄Π²ΠΎΠ΅ ΡΠΌΠ΅Π½ΡΡΠ°Π΅Ρ ΡΡΠΎΠΊ ΡΠ»ΡΠΆΠ±Ρ ΠΏΠ°ΡΠΊΠ΅ΡΠ°.
ΠΠΈΠ°Π³ΠΎΠ½Π°Π»ΡΠ½ΡΠΉ Π½Π°ΡΡΠΈΠ»
ΠΠ°ΡΡΠ΅ΡΠ° ΠΏΡΠΎΡΠΈΠ² ΡΠ°ΠΊΠΎΠΉ ΡΠΊΠ»Π°Π΄ΠΊΠΈ Π»Π°ΠΌΠΈΠ½Π°ΡΠ°, Π½ΠΎ ΠΆΠ΅Π»Π°Π½ΠΈΠ΅ ΠΊΠ»ΠΈΠ΅Π½ΡΠ° β Π·Π°ΠΊΠΎΠ½. Π ΡΡΠΎΠΌ ΡΠ»ΡΡΠ°Π΅ Π»Π°ΠΌΠΈΠ½ΠΈΡΠΎΠ²Π°Π½Π½ΡΡ Π΄ΠΎΡΠΊΡ Π½Π°ΡΡΠΈΠ»Π°ΡΡ ΠΏΠΎΠ΄ ΡΠ³Π»ΠΎΠΌ 40-60 Π³ΡΠ°Π΄ΡΡΠΎΠ² ΠΊ ΡΡΠ΅Π½Π°ΠΌ. Π’Π°ΠΊΠΎΠΉ ΠΌΠΎΠ½ΡΠ°ΠΆ ΠΈΡΠΏΠΎΠ»ΡΠ·ΡΠ΅ΡΡΡ Π² ΠΊΠ°ΡΠ΅ΡΡΠ²Π΅ ΠΎΡΠΎΠ±ΠΎΠ³ΠΎ Π΄ΠΈΠ·Π°ΠΉΠ½Π΅ΡΡΠΊΠΎΠ³ΠΎ ΠΏΡΠΈΠ΅ΠΌΠ°, ΡΡΠΎΠ±Ρ ΠΈΠ·ΠΌΠ΅Π½ΠΈΡΡ Π³Π΅ΠΎΠΌΠ΅ΡΡΠΈΡ ΠΏΠΎΠΌΠ΅ΡΠ΅Π½ΠΈΡ ΠΈΠ»ΠΈ ΡΠ΄Π΅Π»Π°ΡΡ ΠΈΠ½ΡΠ΅ΡΡΠ΅Ρ Π±ΠΎΠ»Π΅Π΅ ΠΈΠ½ΡΠ΅ΡΠ΅ΡΠ½ΡΠΌ. ΠΡΠΎΡ ΡΠΏΠΎΡΠΎΠ± ΡΠ°ΡΡΠΎ ΠΏΡΠΈΠΌΠ΅Π½ΡΡΡ Π² ΠΊΠΎΠΌΠ½Π°ΡΠ°Ρ
, Π³Π΄Π΅ ΠΎΠΊΠΎΠ½Π½ΡΠ΅ ΠΏΡΠΎΠ΅ΠΌΡ ΡΠ°ΡΠΏΠΎΠ»ΠΎΠΆΠ΅Π½Ρ Π½Π° ΡΠΌΠ΅ΠΆΠ½ΡΡ
ΡΡΠ΅Π½Π°Ρ
.
Π’Π°ΠΊΠΎΠΉ ΡΠ±ΠΎΡ ΠΈΠΌΠ΅Π΅Ρ ΠΎΠΏΡΠ΅Π΄Π΅Π»Π΅Π½Π½ΡΠ΅ ΠΌΠΈΠ½ΡΡΡ:
- Π±ΡΡΡΡΠΎ ΡΡΠΈΡΠ°Π΅ΡΡΡ Π½Π° ΡΡΡΠΊΠ°Ρ ;
- ΡΠ°ΡΡ ΠΎΠ΄ΡΠ΅ΡΡΡ ΠΌΠ½ΠΎΠ³ΠΎ ΠΌΠ°ΡΠ΅ΡΠΈΠ°Π»Π° ΠΏΡΠΈ ΠΌΠΎΠ½ΡΠ°ΠΆΠ΅;
- ΡΡΠΎΠ±Ρ ΡΠΈΡΡΠΈΡΡ Π»Π°ΠΌΠΈΠ½Π°Ρ ΠΈ ΡΡ Π°ΠΆΠΈΠ²Π°ΡΡ Π·Π° Π½ΠΈΠΌ, Π½Π΅ΠΎΠ±Ρ ΠΎΠ΄ΠΈΠΌΡ ΡΠΏΠ΅ΡΠΈΠ°Π»ΡΠ½ΡΠ΅ Ρ ΠΈΠΌΠΈΡΠ΅ΡΠΊΠΈΠ΅ ΡΡΠ΅Π΄ΡΡΠ²Π°.
ΠΠ»Ρ ΡΠ°ΠΊΠΎΠ³ΠΎ Π²Π°ΡΠΈΠ°Π½ΡΠ° Π½ΡΠΆΠ½ΠΎ Π²ΡΠ±ΠΈΡΠ°ΡΡ Π»Π°ΠΌΠ΅Π»ΠΈ 33-34 ΠΊΠ»Π°ΡΡΠ° Ρ ΡΠ°ΡΠΊΠΎΠΉ ΠΈΠ»ΠΈ ΡΡΠΊΠΎ Π²ΡΡΠ°ΠΆΠ΅Π½Π½ΠΎΠΉ ΡΠ°ΠΊΡΡΡΠΎΠΉ
ΠΠ΅ΡΡΠ°Π½Π΄Π°ΡΡΠ½ΡΠΉ Π½Π°ΡΡΠΈΠ» Π»Π°ΠΌΠΈΠ½ΠΈΡΠΎΠ²Π°Π½Π°ΡΠ°
ΠΡΠ΅ΠΆΠ΄Π΅ ΡΠ΅ΠΌ Π²ΡΠ±ΡΠ°ΡΡ Π²Π°ΡΠΈΠ°Π½Ρ ΡΠ±ΠΎΡΠΊΠΈ, Π½ΡΠΆΠ½ΠΎ ΠΎΠ±ΡΠ°ΡΠ°ΡΡ Π²Π½ΠΈΠΌΠ°Π½ΠΈΠ΅ Π½Π° Π½Π΅ΠΊΠΎΡΠΎΡΡΠ΅ ΠΎΡΠΎΠ±Π΅Π½Π½ΠΎΡΡΠΈ.
- ΠΠ΅ΠΎΠ±ΡΡΠ½ΡΠΉ ΡΠ°Π·ΠΌΠ΅Ρ Π»Π°ΠΌΠ΅Π»Π΅ΠΉ
Π ΠΊΠΎΠ»Π»Π΅ΠΊΡΠΈΡΡ ΠΏΡΠΎΠΈΠ·Π²ΠΎΠ΄ΠΈΡΠ΅Π»Π΅ΠΉ ΠΌΠΎΠΆΠ½ΠΎ ΡΠ²ΠΈΠ΄Π΅ΡΡ Π½Π΅ ΡΠΎΠ»ΡΠΊΠΎ Π΄Π»ΠΈΠ½Π½ΡΠ΅ Π΄ΠΎΡΠΊΠΈ 30Ρ 200 ΡΠΌ. ΠΠ»Ρ ΠΎΡΠΈΠ³ΠΈΠ½Π°Π»ΡΠ½ΠΎΠ³ΠΎ Π½Π°ΡΡΠΈΠ»Π° Π²ΡΠΏΡΡΠΊΠ°ΡΡ Π»Π°ΠΌΠ΅Π»ΠΈ:
- ΠΏΡΡΠΌΠΎΡΠ³ΠΎΠ»ΡΠ½ΠΎΠ³ΠΎ ΡΠΈΠΏΠ° 40Ρ 80, 40Ρ 120 ΡΠΌ ΠΈ Ρ. Π΄.;
- ΠΊΠ²Π°Π΄ΡΠ°ΡΠ½ΠΎΠ³ΠΎ Π²ΠΈΠ΄Π° 40Ρ 40, 60Ρ 60 ΡΠΌ.
Π’Π°ΠΊΠΎΠΉ ΡΠ°Π·ΠΌΠ΅Ρ Π½Π΅ΠΎΠ±Ρ
ΠΎΠ΄ΠΈΠΌ, ΡΡΠΎΠ±Ρ ΠΈΠΌΠΈΡΠΈΡΠΎΠ²Π°ΡΡ Π½Π°Π±ΠΎΡΠ½ΡΠΉ ΠΌΠ°ΡΡΠΈΠ² ΠΈΠ»ΠΈ Π΄Π²ΠΎΡΡΠΎΠ²ΡΠΉ (Ρ
ΡΠ΄ΠΎΠΆΠ΅ΡΡΠ²Π΅Π½Π½ΡΠΉ) ΠΏΠΎΠ». ΠΠΈΠ·Π°ΠΉΠ½ ΡΠ°ΠΊΠΎΠ³ΠΎ ΠΏΠ°ΡΠΊΠ΅ΡΠ° Π²Π΅Π»ΠΈΠΊΠΎΠ»Π΅ΠΏΠ΅Π½, Π° Π² ΡΠ±ΠΎΡΠ΅ ΡΠΌΠΎΡΡΠΈΡΡΡ ΡΠΈΠΊΠ°ΡΠ½ΠΎ. ΠΠ° ΡΡΠ΅Ρ Π½Π΅ΡΡΠ°Π½Π΄Π°ΡΡΠ½ΡΡ
ΡΠ°Π·ΠΌΠ΅ΡΠΎΠ² ΠΈ Π΄Π΅ΠΊΠΎΡΠΎΠ² ΠΏΡΠΈ Π½Π°ΡΡΠΈΠ»Π΅ ΠΏΠΎΠΊΡΡΡΠΈΡ ΠΌΠΎΠΆΠ½ΠΎ Π½Π΅ ΠΏΡΠΈΠ΄Π΅ΡΠΆΠΈΠ²Π°ΡΡΡΡ ΠΏΡΠ°Π²ΠΈΠ».
- ΠΠ°Π·ΠΎΠ²ΠΎΠ΅ ΠΎΡΠ½ΠΎΠ²Π°Π½ΠΈΠ΅
ΠΠΎΠ΄ Π»Π°ΠΌΠΈΠ½ΠΈΡΠΎΠ²Π°Π½Π½ΠΎΠ΅ ΠΏΠΎΠΊΡΡΡΠΈΠ΅ Π»ΡΡΡΠ΅ΠΉ Π±Π°Π·ΠΎΠΉ Π±ΡΠ΄Π΅Ρ Π²ΡΡΠΎΠ²Π½Π΅Π½Π½Π°Ρ ΠΈ Π²ΡΡΡΡΠ΅Π½Π½Π°Ρ Π±Π΅ΡΠΎΠ½Π½Π°Ρ ΡΡΡΠΆΠΊΠ°. ΠΡΠΈ ΡΠ±ΠΎΡΠΊΠ΅ Π½Π° Π΄ΡΠ΅Π²Π΅ΡΠ½ΠΎΠ΅ ΠΎΡΠ½ΠΎΠ²Π°Π½ΠΈΠ΅ Π»Π°ΠΌΠ΅Π»ΠΈ ΠΌΠΎΠ½ΡΠΈΡΡΡΡ ΠΏΠ΅ΡΠΏΠ΅Π½Π΄ΠΈΠΊΡΠ»ΡΡΠ½ΠΎ Π±Π°Π·ΠΎΠ²ΡΠΌ Π΄ΠΎΡΠΊΠ°ΠΌ. ΠΡΠΈ ΠΏΡΠ°Π²ΠΈΠ»ΡΠ½ΠΎ Π²ΡΠΏΠΎΠ»Π½Π΅Π½Π½ΠΎΠΉ ΡΠ°Π±ΠΎΡΠ΅ ΠΏΡΠΎΠ³ΠΈΠ± ΠΏΠΎΠ»Π° ΡΠ½ΠΈΠΆΠ΅Π½ Π΄ΠΎ ΠΌΠΈΠ½ΠΈΠΌΡΠΌΠ°.
- ΠΠΈΠ·Π°ΠΉΠ½ Π»Π°ΠΌΠΈΠ½Π°ΡΠ°
Π Π°Π΄ΠΈΠ°Π»ΡΠ½ΡΠΉ ΡΠ°ΡΠΏΠΈΠ» β ΡΡΠΎ Π½Π΅ΡΠ²Π½ΠΎ Π²ΡΡΠ°ΠΆΠ΅Π½Π½Π°Ρ ΡΠ°ΠΊΡΡΡΠ½Π°Ρ ΠΏΠΎΠ²Π΅ΡΡ Π½ΠΎΡΡΡ, ΠΈΠΌΠΈΡΠΈΡΡΡΡΠ°Ρ Π΄ΡΠ΅Π²Π΅ΡΠΈΠ½Ρ. ΠΠΎΠ»ΡΡΠ΅Π½Π½ΠΎΠ΅ ΠΏΠΎΠΊΡΡΡΠΈΠ΅ ΠΏΠΎΡΡΠΈ Π½Π΅ ΠΈΠΌΠ΅Π΅Ρ ΠΏΠΎΠ»ΡΡΠΎΠ½ΠΎΠ². ΠΠ°ΠΌΠ΅Π»ΠΈ ΠΌΠΎΠ½ΡΠΈΡΡΡΡ ΠΏΠΎ Ρ ΠΎΠ΄Ρ Π΄Π²ΠΈΠΆΠ΅Π½ΠΈΡ ΠΈΠ»ΠΈ ΠΏΠΎ ΡΠ²Π΅ΡΡ.
Π£ Π»Π°ΠΌΠ΅Π»Π΅ΠΉ ΡΠ°Π½Π³Π΅Π½ΡΠΈΠ°Π»ΡΠ½ΠΎΠ³ΠΎ ΡΠ°ΡΠΏΠΈΠ»Π° Ρ Π°ΡΠ°ΠΊΡΠ΅ΡΠ½ΠΎ Π½Π°Π»ΠΈΡΠΈΠ΅ ΡΠ΅ΠΌΠ½ΡΡ ΠΏΠΎΠ»ΠΎΡΠΎΠΊ, ΡΡΡΠΊΠΎΠ², Π² Π½Π΅ΠΊΠΎΡΠΎΡΡΡ ΠΊΠΎΠ»Π»Π΅ΠΊΡΠΈΡΡ ΠΏΡΠΈΡΡΡΡΡΠ²ΡΠ΅Ρ ΡΠΈΡΠ½Π΅Π½ΠΈΠ΅. Π’Π°ΠΊΠΈΠ΅ ΠΏΠ»Π°Π½ΠΊΠΈ ΠΌΠΎΠΆΠ½ΠΎ ΠΌΠΎΠ½ΡΠΈΡΠΎΠ²Π°ΡΡ Π»ΡΠ±ΡΠΌ ΡΠΏΠΎΡΠΎΠ±ΠΎΠΌ.
ΠΠ°ΠΌΠ΅Π»ΠΈ ΡΡΡΡΠΈΠΊΠ°Π»Ρ ΡΠΎΡΠ΅ΡΠ°ΡΡ Π² ΡΠ΅Π±Π΅ ΡΠ°Π½Π³Π΅Π½ΡΠΈΠ°Π»ΡΠ½ΡΠΉ ΠΈ ΡΠ°Π΄ΠΈΠ°Π»ΡΠ½ΡΠΉ ΡΠ°ΡΠΏΠΈΠ» Ρ Π΄ΠΎΠΏΠΎΠ»Π½Π΅Π½ΠΈΠ΅ΠΌ ΠΈΠΌΠΈΡΠ°ΡΠΈΠ΅ΠΉ ΠΌΠ΅Π»ΠΊΠΎΠ³ΠΎ Π΄Π΅ΡΠ΅ΠΊΡΠ°: ΡΡΠ΅ΡΠΈΠ½ΠΎΠΊ, ΠΏΠΎΡΠ΅ΡΠ½Π΅Π½ΠΈΡ, ΠΏΠΎΡΠ΅ΡΡΠΎΡΡΠΈ, ΡΠ΅Π·ΠΊΠΈΡ
ΠΏΠ΅ΡΠ΅ΠΌΠ΅Π½ ΡΠ²Π΅ΡΠ°. Π’Π°ΠΊΠΎΠΉ Π»Π°ΠΌΠΈΠ½Π°Ρ Π²ΡΠ³Π»ΡΠ΄ΠΈΡ ΡΠΎΡΡΠ°ΡΠ΅Π½Π½ΡΠΌ. ΠΠ»Ρ ΡΠ°Π·Π½ΠΎΠΎΠ±ΡΠ°Π·ΠΈΡ ΠΏΠΎΠΊΡΡΡΠΈΡ ΠΈ ΠΌΠ°ΠΊΡΠΈΠΌΠ°Π»ΡΠ½ΠΎΠ³ΠΎ ΡΡ
ΠΎΠ΄ΡΡΠ²Π° Ρ Π½Π°ΡΡΡΠ°Π»ΡΠ½ΠΎΠΉ Π΄Π΅ΡΠ΅Π²ΡΠ½Π½ΠΎΠΉ Π΄ΠΎΡΠΊΠΎΠΉ Π΄Π΅ΠΊΠΎΡ Π² ΠΏΠ°ΡΠΊΠ΅ ΠΌΠ΅Π½ΡΠ΅ΡΡΡ Ρ ΠΈΠ½ΡΠ΅ΡΠ²Π°Π»ΠΎΠΌ 1:4 ΠΈΠ»ΠΈ 1:6.
ΠΡ ΡΠΎΠ³ΠΎ, ΠΊΠ°ΠΊ ΠΊΠ»Π°ΡΡΡ Π»Π°ΠΌΠΈΠ½Π°Ρ, Π²Π΄ΠΎΠ»Ρ ΠΈΠ»ΠΈ ΠΏΠΎΠΏΠ΅ΡΠ΅ΠΊ ΠΊΠΎΠΌΠ½Π°ΡΡ, Π±ΡΠ΄Π΅Ρ Π·Π°Π²ΠΈΡΠΈΡ Π½Π΅ ΡΠΎΠ»ΡΠΊΠΎ Π΅Π΅ Π²Π½Π΅ΡΠ½ΠΈΠΉ Π²ΠΈΠ΄, Π½ΠΎ ΠΈ Π΄ΠΎΠ»Π³ΠΎΠ²Π΅ΡΠ½ΠΎΡΡΡ ΡΠ°ΠΌΠΎΠ³ΠΎ ΠΏΠΎΠΊΡΡΡΠΈΡ, ΠΏΠΎΡΡΠΎΠΌΡ Π²ΡΠ±ΠΈΡΠ°Ρ Π½Π°ΠΏΡΠ°Π²Π»Π΅Π½ΠΈΠ΅ ΡΠΊΠ»Π°Π΄ΠΊΠΈ Π² ΠΏΠ΅ΡΠ²ΡΡ ΠΎΡΠ΅ΡΠ΅Π΄Ρ Π½ΡΠΆΠ½ΠΎ Π΄ΡΠΌΠ°ΡΡ ΠΎ Π²ΠΎΠ·ΠΌΠΎΠΆΠ½ΠΎΡΡΡΡ ΠΏΠΎΠΊΡΡΡΠΈΡ, Π° Π½Π΅ ΡΡΡΠ΅ΡΠΈΡΠ΅ΡΠΊΠΎΠΌ Π²ΠΈΠ΄Π΅.
ΠΠ°ΠΊ ΡΠΊΠ»Π°Π΄ΡΠ²Π°ΡΡ ΡΠΈΡΠΎΠΊΠΈΠΉ Π»Π°ΠΌΠΈΠ½Π°Ρ ΠΈΠ»ΠΈ Π»Π°ΠΌΠΈΠ½Π°Ρ ΠΏΠΎΠ΄ ΠΏΠ»ΠΈΡΠΊΡ
ΠΠ°ΠΊ ΡΠ»ΠΎΠΆΠΈΡΡ ΡΠΈΡΠΎΠΊΠΈΠΉΒ ΠΈΠ»ΠΈΒ ΠΏΠΎΠ΄Β ΠΏΠ»ΠΈΡΠΊΡ Π»Π°ΠΌΠΈΠ½Π°Ρ ?
ΠΡΠ»ΠΈ Π²Ρ Π»ΡΠ±ΠΈΡΠ΅Π»Ρ ΠΊΠ΅ΡΠ°ΠΌΠΈΠΊΠΈ ΠΈ ΠΊΠ΅ΡΠ°ΠΌΠΈΡΠ΅ΡΠΊΠΎΠΉ ΠΏΠ»ΠΈΡΠΊΠΈ, ΡΠΎ ΠΈΠΌΠ΅Π½Π½ΠΎ Π΄Π»Ρ Π²Π°Ρ Π΅ΡΡΡ Π±ΡΡΡΡΠΎΠ΅, ΠΊΠ°ΡΠ΅ΡΡΠ²Π΅Π½Π½ΠΎΠ΅ ΠΈ ΠΏΡΠΎΡΡΠΎΠ΅ ΡΠ΅ΡΠ΅Π½ΠΈΠ΅! ΠΡΠ±ΠΈΡΠ°Ρ ΡΠΈΡΠΎΠΊΠΈΠΉΒ ΠΈΠ»ΠΈΒ ΠΈΠΌΠΈΡΠΈΡΡΡΡΠΈΠΉ ΠΊΠ΅ΡΠ°ΠΌΠΈΠΊΡΒ Π»Π°ΠΌΠΈΠ½Π°Ρ,Β Π½Π΅ Π³ΠΎΠ½ΠΈΡΠ΅ΡΡ Π·Π° Π΄Π΅ΡΠ΅Π²ΠΈΠ·Π½ΠΎΠΉ. Π¨ΠΈΡΠΎΠΊΠΈΠ΅ Π»Π°ΠΌΠ΅Π»ΠΈ Π½Π°ΠΏΠΎΠ»ΡΠ½ΠΎΠ³ΠΎ ΠΏΠΎΠΊΡΡΡΠΈΡ Π΄ΠΎΠ»ΠΆΠ½Ρ ΠΎΠ±Π»Π°Π΄Π°ΡΡ ΠΈΠ΄Π΅Π°Π»ΡΠ½ΠΎΠΉ Π³Π΅ΠΎΠΌΠ΅ΡΡΠΈΠ΅ΠΉ.Β Π’ΠΎΠ»ΡΠΊΠΎΒ Π² ΡΠ»ΡΡΠ°Π΅ Π²ΡΡΠΎΠΊΠΎΠ³ΠΎ ΠΊΠ°ΡΠ΅ΡΡΠ²Π° Π²ΡΒ ΡΠΌΠΎΠΆΠ΅ΡΠ΅Β Π±ΡΡΡΡΠΎΒ ΡΠΎΠ±ΡΠ°ΡΡ ΠΏΠΎΠ», ΠΊΠΎΡΠΎΡΡΠΉ ΠΏΡΠΎΡΠ»ΡΠΆΠΈΡΒ Π΄ΠΎΠ»Π³ΠΈΠ΅ Π³ΠΎΠ΄Ρ.Β Π£Ρ
ΠΎΠ΄ Π·Π°Β Ρ
ΠΎΡΠΎΡΠΈΠΌ Π½Π°ΠΏΠΎΠ»ΡΠ½ΡΠΌ ΠΏΠΎΠΊΡΡΡΠΈΠ΅ΠΌ Π±ΡΠ΄Π΅ΡΒ Π»Π΅Π³ΠΊΠΈΠΌ,Β Π΄ΡΡΠ³ΠΈΠΌΠΈΒ ΡΠ»ΠΎΠ²Π°ΠΌΠΈ,Β ΠΈΡΠΈΡΠ΅ Π²Π°ΡΠΈΠ°Π½Ρ Π² ΡΠ²ΠΎΠ΅ΠΌ ΡΡΠΈΠ»Π΅Β ΠΈ Ρ ΠΎΠΏΡΠΈΠΌΠ°Π»ΡΠ½ΡΠΌ ΡΠΎΠΎΡΠ½ΠΎΡΠ΅Π½ΠΈΠ΅ΠΌ «ΡΠ΅Π½Π°-ΠΊΠ°ΡΠ΅ΡΡΠ²ΠΎ».
Β
ΠΠ°ΠΌ ΠΏΠΎΠ½Π°Π΄ΠΎΠ±ΠΈΡΡΡ ΠΎΠ±ΡΡΠ½ΡΠΉ Π΄Π΅ΡΠ΅Π²ΠΎΠΎΠ±ΡΠ°Π±Π°ΡΡΠ²Π°ΡΡΠΈΠΉ ΠΈΠ½ΡΡΡΡΠΌΠ΅Π½Ρ (ΡΡΠ°Π½Π΄Π°ΡΡΠ½ΡΠΉ Π½Π°Π±ΠΎΡ: ΠΏΠΈΠ»Π°, ΠΌΠΎΠ»ΠΎΡΠΎΠΊ, ΡΠ°ΡΠΏΠΎΡΠΊΠΈ, Π΄ΠΎΡΠ΅ΡΠΊΠ° ΠΈΠ»ΠΈ ΡΠΏΠ΅ΡΠΈΠ°Π»ΡΠ½Π°Ρ ΡΠ³ΠΎΠ½Π½Π°Ρ ΠΏΠ»Π°Π½ΠΊΠ° Π΄Π»Ρ ΡΠΊΠ»Π°Π΄ΠΊΠΈ ΠΌΠΎΠ»ΠΎΡΠΊΠΎΠΌ), Π° ΡΠ°ΠΊΠΆΠ΅ Π½Π΅ΠΌΠ½ΠΎΠ³ΠΎ ΡΠΈΠ», ΠΆΠ΅Π»Π°Π½ΠΈΡ ΠΈ ΡΠ½ΠΎΡΠΎΠ²ΠΊΠΈ. ΠΡ ΡΠ°ΠΊΠΆΠ΅ ΠΌΠΎΠΆΠ΅ΡΠ΅ ΠΈΡΠΏΠΎΠ»ΡΠ·ΠΎΠ²Π°ΡΡ Π»ΠΎΠ±Π·ΠΈΠΊ ΠΈΠ»ΠΈ ΡΠΈΡΠΊΡΠ»ΡΡΠ½ΡΡ ΠΏΠΈΠ»Ρ ΠΏΡΠΈ ΠΈΡ
Π½Π°Π»ΠΈΡΠΈΠΈ, Π½ΠΎ ΠΏΡΠΈ ΡΠ°ΡΠΏΠΈΠ»Π΅ ΠΏΠΎΠΌΠ½ΠΈΡΠ΅ Π·ΠΎΠ»ΠΎΡΠΎΠ΅ ΠΏΡΠ°Π²ΠΈΠ»ΠΎ «ΡΠ΅ΠΌΡ ΡΠ°Π· ΠΎΡΠΌΠ΅ΡΡ — ΠΎΠ΄ΠΈΠ½ ΠΎΡΡΠ΅ΠΆΡ». ΠΠ°ΠΊ ΠΏΡΠ°Π²ΠΈΠ»ΠΎ Π»ΡΠ΄ΠΈ, Π²ΠΏΠ΅ΡΠ²ΡΠ΅ Π·Π°Π½ΡΠ²ΡΠΈΡΡ ΡΠΊΠ»Π°Π΄ΠΊΠΎΠΉ ΡΠ°ΠΌΠΎΡΡΠΎΡΡΠ΅Π»ΡΠ½ΠΎ, Π½Π° ΡΡ ΡΠ°ΠΌΡΡ «ΡΠ½ΠΎΡΠΎΠ²ΠΊΡ» ΠΏΠΎΡΡΡΡ Π½Π΅ ΠΎΠ΄Π½Ρ ΠΏΠ°ΡΠΊΡ Π»Π°ΠΌΠΈΠ½Π°ΡΠ°… ΠΡΠ°ΠΊ, Π½Π°ΡΠΈΠ½Π°Π΅ΠΌ. ΠΠ·Π½Π°ΡΠ°Π»ΡΠ½ΠΎ ΡΠΊΠ»Π°Π΄ΡΠ²Π°Π΅ΠΌ ΠΏΠΎΠ΄Π»ΠΎΠΆΠΊΡ. ΠΠ°Π»Π΅Π΅, Π² Π·Π°Π²ΠΈΡΠΈΠΌΠΎΡΡΠΈ ΠΎΡ ΠΆΠ΅Π»Π°Π΅ΠΌΠΎΠ³ΠΎ ΡΠ΅Π·ΡΠ»ΡΡΠ°ΡΠ°, ΠΊΠ»Π°Π΄Π΅ΠΌ ΠΏΠ΅ΡΠ²ΡΡ Π»ΠΈΠ½ΠΈΡ Π²Π΄ΠΎΠ»Ρ ΡΠ°ΠΌΠΎΠΉ Π΄Π»ΠΈΠ½Π½ΠΎΠΉ ΡΡΠ΅Π½Ρ Π² ΠΏΠΎΠΌΠ΅ΡΠ΅Π½ΠΈΠΈ ΠΏΠΎ Π½Π°ΠΏΡΠ°Π²Π»Π΅Π½ΠΈΡ ΡΠ²Π΅ΡΠ° (Π½ΠΈΠΆΠ΅ ΠΏΡΠΈΠ²Π΅Π΄Ρ ΠΏΡΠ°Π²ΠΈΠ»Π° Π² ΠΊΠ°ΡΡΠΈΠ½ΠΊΠ°Ρ
). ΠΠ° ΠΊΠ°ΡΡΠΈΠ½ΠΊΠ΅ ΠΌΠ°ΡΡΠ΅Ρ ΡΠΊΠ»Π°Π΄ΡΠ²Π°Π΅Ρ Π»Π°ΠΌΠΈΠ½Π°Ρ, ΡΡΠ΅Π·Π°Π² ΠΏΠ΅ΡΠ²ΡΡ Π»ΠΈΠ½ΠΈΡ Π΄Π»Ρ Π²ΡΡΠ°Π²Π½ΠΈΠ²Π°Π½ΠΈΡ ΠΈΠ·Π³ΠΈΠ±ΠΎΠ² Π½Π΅ΡΠΎΠ²Π½ΡΡ
ΡΡΠ΅Π½ ( ΠΏΠΎΠΌΠ΅ΡΠ΅Π½ΠΈΠ΅ ΡΠ»ΠΎΠΆΠ½ΠΎΠΉ Π³Π΅ΠΎΠΌΠ΅ΡΡΠΈΠΈ). Π‘ΠΎΠ±ΡΠ°Π² ΡΡΡΠΊ Π² ΡΡΡΠΊ ΠΏΠ΅ΡΠ²ΡΡ Π»ΠΈΠ½ΠΈΡ Π²Π΄ΠΎΠ»Ρ ΡΡΠ΅Π½Ρ, Π²Ρ Π²ΡΡΡΠ½ΠΈΡΠ΅, Π½Π°ΡΠΊΠΎΠ»ΡΠΊΠΎ ΠΎΠ½Π° ΡΠΎΠ²Π½Π°Ρ, ΠΈ Π² ΡΠ»ΡΡΠ°Π΅ Π½Π΅ΠΎΠ±Ρ
ΠΎΠ΄ΠΈΠΌΠΎΡΡΠΈ ΡΠ΄Π΅Π»Π°Π΅ΡΠ΅ ΠΏΡΠΎΠ΄ΠΎΠ»ΡΠ½ΡΠ΅ Π·Π°ΠΏΠΈΠ»Ρ Π΄Π»Ρ ΠΊΠ°ΡΠ΅ΡΡΠ²Π΅Π½Π½ΠΎΠ³ΠΎ ΠΏΡΠΈΠ»Π΅Π³Π°Π½ΠΈΡ ΠΏΠ΅ΡΠ²ΠΎΠΉ Π»ΠΈΠ½ΠΈΠΈ Π»Π°ΠΌΠΈΠ½Π°ΡΠ° ΠΊ ΡΠ°ΡΠΏΠΎΡΠΊΠ°ΠΌ.
Π Π½Π°ΡΠ΅ΠΌ ΡΠ»ΡΡΠ°Π΅ ΠΌΡ ΠΈΡΠΏΠΎΠ»ΡΠ·ΡΠ΅ΠΌ ΡΠ»Π΅ΡΠ°ΡΠ½ΡΠΉ ΠΏΠΎΡΡΠ°ΡΠΈΠ²Π½ΡΠΉ ΡΡΠΎΠ» Π΄Π»Ρ ΡΠ°Π±ΠΎΡΡ Ρ Π΄ΡΠ΅Π²Π΅ΡΠΈΠ½ΠΎΠΉ Ρ ΡΠΈΡΠΊΡΠ»ΡΡΠ½ΠΎΠΉ ΠΏΠΈΠ»ΠΎΠΉ (ΠΌΠ΅Π»ΠΊΠΈΠ΅ Π·ΡΠ±ΡΡ!).Β Β ΠΠ±ΡΠ°ΡΠ°ΡΒ ΠΠ°ΡΠ΅ Π²Π½ΠΈΠΌΠ°Π½ΠΈΠ΅, ΡΡΠΎ ΠΊΠ°ΠΆΠ΄Π°Ρ ΡΠ»Π΅Π΄ΡΡΡΠ°Ρ Π»ΠΈΠ½ΠΈΡΒ ΠΏΡΠΈ ΡΠΊΠ»Π°Π΄ΠΊΠ΅Β Π΄ΠΎΠ»ΠΆΠ½Π° Π±ΡΡΡ ΠΏΠΎΠ΄ΠΎΠ±ΡΠ°Π½Π° ΡΠΎ ΡΠΌΠ΅ΡΠ΅Π½ΠΈΠ΅ΠΌ Π½Π΅ ΠΌΠ΅Π½Π΅Π΅ ΡΠ΅ΠΌ Π½Π° 15 ΡΠΌ (Π² Π·Π°Π²ΠΈΡΠΈΠΌΠΎΡΡΠΈ ΠΎΡ ΡΠΈΡΡΠ½ΠΊΠ° Π½Π° Π²ΡΠ±ΡΠ°Π½Π½ΠΎΠΌ Π²Π°ΠΌΠΈ Π»Π°ΠΌΠΈΠ½Π°ΡΠ΅).Β ΠΠ°Π³Π»ΡΠ΄Π½ΠΎ ΡΡΠΎ ΠΏΡΠ°Π²ΠΈΠ»ΠΎ ΠΎΡΠΎΠ±ΡΠ°ΠΆΠ΅Π½ΠΎ Π½Π°Β ΠΊΠ°ΡΡΠΈΠ½ΠΊΠ°Ρ
.ΠΠ°ΠΌΠΈΠ½Π°ΡΒ ΡΠΊΠ»Π°Π΄ΡΠ²Π°ΡΡ Π±ΠΎΠ»ΡΡΠΈΠΌ Π·Π°ΠΌΠΊΠΎΠ²Β Π²Π²Π΅ΡΡ
. ΠΠ°ΠΌΠΈΠ½Π°Ρ ΡΠΊΠ»Π°Π΄ΡΠ²Π°ΡΡ ΠΏΠΎ Π½Π°ΠΏΡΠ°Π²Π»Π΅Π½ΠΈΡ ΡΠ²Π΅ΡΠ° (Π΅ΡΠ»ΠΈ Π² ΠΏΠΎΠΌΠ΅ΡΠ΅Π½ΠΈΠΈ Π½Π΅ΡΠΊΠΎΠ»ΡΠΊΠΎ ΠΎΠΊΠΎΠ½, ΠΏΠΎΡΠΌΠΎΡΡΠΈΡΠ΅ Ρ ΠΊΠ°ΠΊΠΎΠΉ ΡΡΠΎΡΠΎΠ½Ρ Π±ΠΎΠ»ΡΡΠ΅ ΡΠ²Π΅ΡΠ°). ΠΠ°ΠΆΠ΄Π°Ρ ΠΏΠΎΡΠ»Π΅Π΄ΡΡΡΠ°Ρ Π»Π°ΠΌΠ΅Π»Ρ ΠΊΠ»Π°Π΄Π΅ΡΡΡ ΡΠΎ ΡΠΌΠ΅ΡΠ΅Π½ΠΈΠ΅ΠΌ (ΠΏΠΎΠ΄Π±ΠΈΡΠ°Π΅ΠΌ ΡΠΈΡΡΠ½ΠΎΠΊ Π΄Π»Ρ ΡΠΌΠ΅ΡΠ΅Π½ΠΈΡ, ΠΎΡΠΏΠΈΠ»ΠΈΠ²Π°Π΅ΠΌΒ Π»ΠΈΡΠ½Π΅Π΅).
Π‘ΡΠ°Π·Ρ ΠΎΠ±ΡΠ°ΡΠ°Ρ Π²Π½ΠΈΠΌΠ°Π½ΠΈΠ΅ Π½Π° ΡΡ
Π΅ΠΌΡ ΡΠΊΠ»Π°Π΄ΠΊΠΈ (Π½Π° ΠΊΠ°ΡΡΠΈΠ½ΠΊΠ΅), 1-2-3-4 Β ΡΠΊΠ»Π°Π΄ΠΊΠ° ΠΏΠ΅ΡΠ²ΠΎΠΉ Π»ΠΈΠ½ΠΈΠΈ, Π΄Π°Π»Π΅Π΅ ΠΎΡΠΏΠΈΠ»Π΅Π½Π½Π°Ρ ΡΠ°ΡΡΡ 4 Π»Π°ΠΌΠ΅Π»ΠΈ ΠΈΠ΄Π΅Ρ Π½Π° Π½Π°ΡΠ°Π»ΠΎ Π½ΠΎΠ²ΠΎΠΉ Π»ΠΈΠ½ΠΈΠΈ 4-5-6 ΠΈ Ρ.
Π΄. Π’Π°ΠΊΠΈΠΌ ΠΎΠ±ΡΠ°Π·ΠΎΠΌ, Π²Ρ Π±ΡΠ΄Π΅ΡΠ΅ ΠΌΠ°ΠΊΡΠΈΠΌΠ°Π»ΡΠ½ΠΎ ΡΠΊΠΎΠ½ΠΎΠΌΠΈΡΡ ΠΌΠ°ΡΠ΅ΡΠΈΠ°Π» ΠΈ ΠΏΠΎΠ»ΡΡΠ°ΡΡΒ ΡΠΌΠ΅ΡΠ΅Π½ΠΈΠ΅ Π΄Π»Ρ ΡΠΎΠ·Π΄Π°Π½ΠΈΡ Π½Π°Π΄Π΅ΠΆΠ½ΠΎΠΉ ΡΡΡΠΆΠΊΠΈ Π·Π°ΠΌΠΊΠΎΠ²ΡΡ
ΡΠΎΠ΅Π΄ΠΈΠ½Π΅Π½ΠΈΠΉ. ΠΡΠΈ ΡΠΊΠ»Π°Π΄ΠΊΠ΅ Π»Π°ΠΌΠΈΠ½Π°ΡΠ° ΠΏΠΎΠ΄ ΠΏΠ»ΠΈΡΠΊΡ Π½Π΅Β Π·Π°Π±ΡΠ²Π°ΠΉΡΠ΅Β ΠΏΡΠΎ ΠΏΠΎΠ΄Π±ΠΎΡ ΡΠΈΡΡΠ½ΠΊΠ° ΠΈ Π½Π΅ΠΎΠ±Ρ
ΠΎΠ΄ΠΈΠΌΠΎΡΡΡ ΠΏΠΎΠ΄ΠΏΠΈΠ»ΠΈΠ²Π°Π½ΠΈΡ Π½Π°ΡΠ°Π»ΡΠ½ΠΎΠΉ Π»Π°ΠΌΠ΅Π»ΠΈ ΠΊΠ°ΠΆΠ΄ΠΎΠΉ Π½ΠΎΠ²ΠΎΠΉ Π»ΠΈΠ½ΠΈΠΈ (Π΄Π»Ρ ΠΏΠΎΠ΄Π³ΠΎΠ½ΠΊΠΈ ΠΏΠΎΠ΄ ΡΠΈΡΡΠ½ΠΎΠΊ).Β
ΠΠ½ΠΈΠΌΠ°ΡΠ΅Π»ΡΠ½ΠΎΒ ΡΠ»Π΅Π΄ΠΈΠΌ Π·Π° Π³Π΅ΠΎΠΌΠ΅ΡΡΠΈΠ΅ΠΉ:Β Π²ΡΠ΅ Π»ΠΈΠ½ΠΈΠΈ Π΄ΠΎΠ»ΠΆΠ½Ρ Π±ΡΡΡ ΡΠ»ΠΎΠΆΠ΅Π½Ρ ΠΈΠ΄Π΅Π°Π»ΡΠ½ΠΎ. ΠΡΠ±ΠΎΠ΅ ΡΠΌΠ΅ΡΠ΅Π½ΠΈΠ΅ ΡΠ°Π·ΡΡΡΠΈΡ ΠΈΠ»Π»ΡΠ·ΠΈΡ ΡΠ»ΠΎΠΆΠ΅Π½Π½ΠΎΠΉ Π½Π°ΡΡΡΠ°Π»ΡΠ½ΠΎΠΉ ΠΏΠ»ΠΈΡΠΊΠΈ.Β ΠΠ°ΠΊΠ»Π°Π΄ΡΠ²Π°Π΅ΠΌΒ Π·Π°ΠΌΠΊΠΈ ΠΏΠ°Π· Π²Β ΠΏΠ°Π·,Β ΠΊΠ°ΠΊ ΠΏΠΎΠΊΠ°Π·Π°Π½ΠΎ Π½Π° ΠΊΠ°ΡΡΠΈΠ½ΠΊΠ°Ρ
. ΠΡΠΈ Π½Π΅ΠΎΠ±Ρ
ΠΎΠ΄ΠΈΠΌΠΎΡΡΠΈ (Π΅ΡΠ»ΠΈ ΠΎΠ±ΡΠ°Π·ΠΎΠ²Π°Π»ΠΈΡΡ ΡΠ΅Π»ΠΈ) ΠΏΠ°Π·Ρ ΠΌΠΎΠΆΠ½ΠΎ ΡΠΎΠ³Π½Π°ΡΡ Π»Π΅Π³ΠΊΠΈΠΌ ΡΠ΄Π°ΡΠΎΠΌ ΠΌΠΎΠ»ΠΎΡΠΊΠ° ΠΎ ΡΠΏΠ΅ΡΠΈΠ°Π»ΡΠ½ΡΠΉ Π±ΡΡΡΠΎΠΊ ΠΈΠ»ΠΈ ΠΏΠ»ΠΎΡΠ½ΡΡ Π΄ΠΎΡΠ΅ΡΠΊΡ. ΠΠ½ΠΈΠΌΠ°Π½ΠΈΠ΅, Π΄Π°Π½Π½ΡΠΉ ΡΠΏΠΎΡΠΎΠ± Π²ΡΠ΅ ΡΠ°ΡΠ΅ Π½Π΅ ΡΠ΅ΠΊΠΎΠΌΠ΅Π½Π΄ΡΠ΅ΡΡΡ ΠΏΡΠΎΠΈΠ·Π²ΠΎΠ΄ΠΈΡΠ΅Π»ΡΠΌΠΈ, Ρ.ΠΊ. Π² ΡΠΎΠ²ΡΠ΅ΠΌΠ΅Π½Π½ΠΎΠΌ Π»Π°ΠΌΠΈΠ½Π°ΡΠ΅ Π·Π½Π°ΡΠΈΡΠ΅Π»ΡΠ½ΠΎ ΠΈΠ·ΠΌΠ΅Π½ΠΈΠ»Π°ΡΡ ΡΠΈΡΡΠ΅ΠΌΠ° Π·Π°ΠΌΠΊΠΎΠ². ΠΠΎΠ»ΡΡΠΈΠ½ΡΡΠ²ΠΎ ΠΏΠΎΠΊΡΡΡΠΈΠΉ Π·Π°ΠΏΡΠ΅ΡΠ°ΡΡ ΡΠ΄Π°ΡΡ ΠΈ Π·Π°ΠΊΡΡΠ²Π°ΡΡΡΡ Π½Π°ΠΆΠ°ΡΠΈΠ΅ΠΌ Ρ ΡΡΠΈΠ»ΠΈΠ΅ΠΌ. Π§ΠΈΡΠ°ΠΉΡΠ΅ ΠΈΠ½ΡΡΡΡΠΊΡΠΈΡ ΠΊ Π»Π°ΠΌΠΈΠ½Π°ΡΡ!Β ΠΠΈ Π² ΠΊΠΎΠ΅ΠΌ ΡΠ»ΡΡΠ°Π΅ Π½Π΅ Π±Π΅ΠΉΡΠ΅ Π»Π°ΠΌΠΈΠ½Π°Ρ Π½Π°ΠΏΡΡΠΌΡΡ, ΠΊΠ°ΠΊ ΠΌΠΈΠ½ΠΈΠΌΡΠΌ ΠΏΠΎΠ»ΡΡΠΈΡΠ΅ ΡΠΊΠΎΠ». Π£Π΄Π°Ρ Π΄ΠΎΠ»ΠΆΠ΅Π½ ΡΠ°ΡΠΏΡΠ΅Π΄Π΅Π»ΡΡΡΡΡ Π½Π° ΡΠΈΡΠΎΠΊΡΡΒ ΠΏΠΎΠ²Π΅ΡΡ
Π½ΠΎΡΡΡ,Β ΡΠΎΠ·Π΄Π°Π²Π°Ρ ΠΎΠ±ΡΠΈΠΉ ΠΌΡΠ³ΠΊΠΈΠΉΒ ΡΠΎΠ»ΡΠΎΠΊ.
ΠΠ»Ρ ΡΠΎΠ³ΠΎ ΡΡΠΎΠ±Ρ Π½Π΅ ΠΏΡΠΎΠΈΡΡ ΠΎΠ΄ΠΈΠ»ΠΎ ΡΠΌΠ΅ΡΠ΅Π½ΠΈΠΉ ΠΏΡΠΈ Π±ΠΎΠΊΠΎΠ²ΠΎΠΌ ΡΠ΄Π°ΡΠ΅ Π΄Π»Ρ Π·Π°ΡΠ΅Π»ΠΊΠΈΠ²Π°Π½ΠΈΡ Π·Π°ΠΌΠΊΠΎΠ², Π½Π΅ΠΎΠ±Ρ ΠΎΠ΄ΠΈΠΌΠΎ ΠΏΠΎΠΏΡΠΎΡΠΈΡΡ ΠΊΠΎΠ³ΠΎ-ΡΠΎ Π²ΡΡΠ°ΡΡ Π½Π° ΠΏΡΠΈΠ½ΠΈΠΌΠ°ΡΡΡΡ ΡΠ΄Π°Ρ ΡΡΠΎΡΠΎΠ½Ρ ΡΠ»ΠΎΠΆΠ΅Π½Π½ΠΎΠ³ΠΎ ΠΏΠΎΠ»Π°. ΠΡΠΎ ΠΏΡΠ΅Π΄ΠΎΡΠ²ΡΠ°ΡΠΈΡ ΡΠΌΠ΅ΡΠ΅Π½ΠΈΠ΅ ΡΠ»ΠΎΠΆΠ΅Π½Π½ΠΎΠΉ ΠΈΒ Π΄ΠΎΠ±ΡΠ°Π½Π½ΠΎΠΉΒ ΠΏΠΎ ΡΠΈΡΡΠ½ΠΊΡ ΠΏΠΎΠ²Π΅ΡΡ Π½ΠΎΡΡΠΈ.
Π‘ΡΠΎΠΈΡ ΡΡΠ΅ΡΡΡ ΡΠΎΡ ΡΠ°ΠΊΡ, ΡΡΠΎ Π»ΡΡΡΠ΅Β Π²ΡΠ΅Π³ΠΎ,Β Π΅ΡΠ»ΠΈ Π»Π°ΠΌΠΈΠ½Π°Ρ Π·Π°ΠΊΠΎΠ½ΡΠΈΡΡΡ ΡΠ°ΠΌ, Π³Π΄Π΅ Π±ΡΠ΄Π΅Ρ Π² Π΄Π°Π»ΡΠ½Π΅ΠΉΡΠ΅ΠΌ ΡΡΠΎΡΡΡ ΠΌΠ΅Π±Π΅Π»Ρ. ΠΡΠΈ ΡΠΊΠ»Π°Π΄ΠΊΠ΅ΠΏΠΎΠΊΡΡΡΠΈΡΒ Ρ Π²ΡΡΠ°ΠΆΠ΅Π½Π½ΡΠΌ ΡΠΈΡΡΠ½ΠΊΠΎΠΌ, Π°Β ΡΠ΅ΠΌ Π±ΠΎΠ»Π΅Π΅Β ΠΏΠΎΠ΄Β ΠΏΠ»ΠΈΡΠΊΡ,Β ΡΠ»Π΅ΠΌΠ΅Π½ΡΡ Π½Π°ΡΡΡΠ΅Π½ΠΈΡ ΡΠ΅Π»ΠΎΡΡΠ½ΠΎΡΡΠΈ Π³Π΅ΠΎΠΌΠ΅ΡΡΠΈΠΈ Π»ΡΡΡΠ΅ ΡΠΊΡΡΠ²Π°ΡΡΒ ΡΠ°ΠΌ,Β Π³Π΄Π΅ ΠΎΠ½ΠΈ Π±ΡΠ΄ΡΡ Π½Π°ΠΈΠΌΠ΅Π½Π΅Π΅ Π²ΠΈΠ΄Π½Ρ (Π΄ΠΈΠ²Π°Π½, ΠΌΠ΅Π±Π΅Π»Ρ, ΠΊΡΠ΅ΡΠ»Π° ΠΈΒ Ρ.ΠΏ.).Β ΠΡΠΎ ΠΎΡΠΎΠ±Π΅Π½Π½ΠΎ Π²Π°ΠΆΠ½ΠΎ Π² ΠΌΠ°Π»Π΅Π½ΡΠΊΠΈΡ
ΠΏΠΎΠΌΠ΅ΡΠ΅Π½ΠΈΡΡ
, Π½Π°ΠΏΡΠΈΠΌΠ΅ΡΒ ΠΏΡΠΈΡ
ΠΎΠΆΠΈΡ
,Β Π³Π΄Π΅ ΡΠΎΠ½ΠΊΠΈΠΉ ΡΡΠ΅Π· ΠΏΠ»ΠΈΡΠΊΠΈΒ Π²Π΄ΠΎΠ»ΡΒ ΡΡΠ΅Π½Ρ ΠΌΠΎΠΆΠ΅Ρ ΠΈΡΠΏΠΎΡΡΠΈΡΡ Π²ΡΡ ΠΊΠ°ΡΡΠΈΠ½ΡΒ ΠΈ ΡΠΊΠΎΡΠ΅Π΅ Π±ΡΠ΄Π΅Ρ ΠΏΠΎΡ
ΠΎΠΆ Π½Π° ΡΡΡΠΎΠΈΡΠ΅Π»ΡΠ½ΡΡΒ ΠΎΡΠΈΠ±ΠΊΡ,Β ΡΠ΅ΠΌ Π½Π° Π½Π΅ΠΎΠ±Ρ
ΠΎΠ΄ΠΈΠΌΡΠΉΒ ΠΊΠΎΠΌΠΏΡΠΎΠΌΠΈΡΡ ΠΏΡΠΈ Π·Π°Π²Π΅ΡΡΠ΅Π½ΠΈΠΈΒ ΠΏΠΎΠ»ΠΎΡΠ½Π°. ΠΡΠΈ ΡΠΊΠ»Π°Π΄ΠΊΠ΅ ΠΏΠΎΡΠ»Π΅Π΄Π½Π΅ΠΉ Π»Π°ΠΌΠ΅Π»ΠΈΒ ΡΠ±Π΅Π΄ΠΈΡΠ΅ΡΡ,Β ΡΡΠΎΒ Π»ΠΈΠ½ΠΈΡ ΠΎΡΠ½ΠΎΠ²Π°Π½ΠΈΡΒ ΡΡΠ΅Π½ΡΒ ΠΏΠ°ΡΠ°Π»Π»Π΅Π»ΡΠ½Π°Β ΠΎΡΠ½ΠΎΠ²Π½ΠΎΠΌΡ ΠΏΠΎΠ»Ρ. ΠΡΠΎ ΠΏΡΠ΅Π΄ΠΎΡΠ²ΡΠ°ΡΠΈΡ Π½Π΅Π²Π΅ΡΠ½ΡΠΉ ΡΡΠ΅Π· ΠΏΠΎΡΠ»Π΅Π΄Π½Π΅ΠΉ Π»Π°ΠΌΠ΅Π»ΠΈ.
Π ΡΠ»ΡΡΠ°Π΅ Π½Π΅ΠΎΠ±Ρ
ΠΎΠ΄ΠΈΠΌΠΎΡΡΠΈ ΡΠ΄Π΅Π»Π°ΠΉΡΠ΅ ΡΡΠ΅Π·Ρ ΡΠΎΠ³Π»Π°ΡΠ½ΠΎ ΡΠ»ΠΎΠΆΠΈΠ²ΡΠ΅ΠΉΡΡ Π³Π΅ΠΎΠΌΠ΅ΡΡΠΈΠΈ ΠΏΠΎΠ»Π°.
Π ΠΌΠ΅ΡΡΠ΅ ΠΏΠ΅ΡΠ΅Ρ
ΠΎΠ΄Π° Π»Π°ΠΌΠΈΠ½Π°ΡΠ° Π² Π΄Π²Π΅ΡΠ½ΠΎΠΉ ΠΏΡΠΎΠ΅ΠΌ Β ΡΠ°ΡΠΏΠΈΠ» Π½Π΅ΠΎΠ±Ρ
ΠΎΠ΄ΠΈΠΌΠΎΒ ΠΏΡΠΎΠΈΠ·Π²ΠΎΠ΄ΠΈΡΡ,Β ΠΎΠ³ΠΈΠ±Π°Ρ Β ΠΊΠΎΡΡΠΊ Π΄Π²Π΅ΡΠΈ ΡΠ°ΠΊ, ΡΡΠΎΠ±Ρ ΠΎΠ±ΡΠΈΠΉΒ ΡΠΈΡΡΠ½ΠΎΠΊΒ ΠΏΠΎΠ»Π° Π½Π΅ ΠΏΡΠ΅ΡΡΠ²Π°Π»ΡΡ. Π ΡΠ»ΡΡΠ°Π΅ Π΅ΡΠ»ΠΈ Π²Ρ Π½Π° ΡΡΠΎΠΌ Π·Π°Π²Π΅ΡΡΠ°Π΅ΡΠ΅ ΡΠΊΠ»Π°Π΄ΠΊΡ Π»Π°ΠΌΠΈΠ½Π°ΡΠ° ΠΈΠ»ΠΈ Ρ Π²Π°Ρ Π΄Π°Π»Π΅Π΅ Π»Π΅ΠΆΠΈΡ ΠΏΠ»ΠΈΡΠΊΠ° ΠΈΠ»ΠΈ ΠΏΠ°ΡΠΊΠ΅ΡΠ½Π°ΡΒ Π΄ΠΎΡΠΊΠ°,Β ΠΏΠ΅ΡΠ΅Ρ
ΠΎΠ΄ ΠΌΠΎΠΆΠ½ΠΎ Π²ΡΠΏΠΎΠ»Π½ΠΈΡΡ ΠΏΠΎΡΠΎΠΆΠΊΠΎΠΌ. ΠΡΠ»ΠΈ ΡΠΊΠ»Π°Π΄ΠΊΠ° ΠΏΡΠΎΠ΄ΠΎΠ»ΠΆΠ°Π΅ΡΡΡ Π² ΠΏΠΎΡΠ»Π΅Π΄ΡΡΡΠΈΠ΅Β ΠΏΠΎΠΌΠ΅ΡΠ΅Π½ΠΈΡ,Β ΡΠΎ ΡΠ°ΡΠΏΠΈΠ» ΠΏΠΎΡΠ»Π΅Π΄Π½Π΅ΠΉ ΠΏΠ»Π°Π½ΠΊΠΈ Π² ΡΠ°ΠΉΠΎΠ½Π΅ Π΄Π²Π΅ΡΠ½ΠΎΠ³ΠΎ ΠΏΡΠΎΠ΅ΠΌΠ° Π²ΡΠΏΠΎΠ»Π½ΡΠ΅ΡΡΡ ΠΈΠ·Β ΡΠ΅Π»ΡΠ½ΠΎΠ³ΠΎΒ ΠΏΠΎΠ»ΠΎΡΠ½Π° Π»Π°ΠΌΠΈΠ½ΠΈΡΠΎΠ²Π°Π½Π½ΠΎΠΉ Π»Π°ΠΌΠ΅Π»ΠΈ (ΠΊΠ°ΠΊ Π½Π° ΠΊΠ°ΡΡΠΈΠ½ΠΊΠ΅).
Π’Π°ΠΊΠΆΠ΅ ΡΡΠΎΠΈΡ Π·Π°ΠΌΠ΅ΡΠΈΡΡ, ΡΡΠΎ ΠΊΠΎΡΡΠΊ Ρ Π΄Π²Π΅ΡΠ½ΠΎΠ³ΠΎ ΠΏΡΠΎΠ΅ΠΌΠ° Π½Π΅ΠΎΠ±Ρ
ΠΎΠ΄ΠΈΠΌΠΎΒ Π΄Π΅ΠΌΠΎΠ½ΡΠΈΡΠΎΠ²Π°ΡΡΒ Π½Π° Π²ΡΠ΅ΠΌΡ ΡΠΊΠ»Π°Π΄ΠΊΠΈ. ΠΠ±ΡΠ°ΡΠΈΡΠ΅ Π²Π½ΠΈΠΌΠ°Π½ΠΈΠ΅ ΠΏΡΠΈ Π²ΡΠΏΠΈΠ»ΠΈΠ²Π°Π½ΠΈΠΈ Π»Π°ΠΌΠ΅Π»ΠΈ Π΄Π»Ρ Π΄Π²Π΅ΡΠ½ΠΎΠ³ΠΎ ΠΏΡΠΎΠ΅ΠΌΠ° Π½Π°Β ΡΠ°ΡΡΡΠΎΡΠ½ΠΈΠ΅Β Π·Π°ΠΊΡΡΡΠΈΡ Π·Π°ΠΌΠΊΠ°. Π Π°ΡΠΏΠΈΠ» Π΄ΠΎΠ»ΠΆΠ΅Π½ Π±ΡΡΡ ΡΠΌΠ΅ΡΠ΅Π½ ΠΎΡ Π·Π°ΠΌΠΊΠ° Π½Π°Β Π½Π΅ΠΎΠ±Ρ
ΠΎΠ΄ΠΈΠΌΠΎΠ΅ ΡΠ°ΡΡΡΠΎΡΠ½ΠΈΠ΅Β ΡΠΌΠ΅ΡΠ΅Π½ΠΈΡ ΠΏΡΠΈ Π΅Π³ΠΎ Π·Π°ΠΊΡΡΡΠΈΠΈ. Π’Π°ΠΊΠΈΠΌ ΠΎΠ±ΡΠ°Π·ΠΎΠΌ, Π²Ρ ΠΏΠΎΠ»ΡΡΠΈΡΠ΅ ΠΈΠ΄Π΅Π°Π»ΡΠ½ΡΠΉ ΡΡΡΠΊ ΠΈ ΠΌΠΈΠ½ΠΈΠΌΠ°Π»ΡΠ½ΡΠΉ Π½Π΅ΠΎΠ±Ρ
ΠΎΠ΄ΠΈΠΌΡΠΉ Π·Π°Π·ΠΎΡ Π² ΠΌΠ΅ΡΡΠ°Ρ
ΠΎΠ³ΠΈΠ±Π°Π½ΠΈΡ ΠΏΠΎΠ»ΠΎΡΠ½Π° Π΄Π²Π΅ΡΠ½ΠΎΠ³ΠΎ ΠΏΡΠΎΠ΅ΠΌΠ°. ΠΡΠΈΒ ΡΠ°Π·ΠΌΠ΅ΡΠΊΠ΅Β Π½Π΅Β Π±ΠΎΠΉΡΠ΅ΡΡ Π΄Π΅Π»Π°ΡΡΒ ΠΊΠ°ΡΠ°Π½Π΄Π°ΡΠΎΠΌ Π»ΡΠ±ΡΠ΅Β ΠΏΠΎΠΌΠ΅ΡΠΊΠΈ,Β ΠΊΠΎΡΠΎΡΡΠ΅ ΠΏΠΎΠΌΠΎΠ³ΡΡ Π²Π°ΠΌ ΡΠ΄Π΅Π»Π°ΡΡ ΠΏΡΠ°Π²ΠΈΠ»ΡΠ½ΡΠΉ ΡΡΠ΅Π·.Β ΠΠ°ΡΠ°Π½Π΄Π°ΡΒ Π² Π΄Π°Π»ΡΠ½Π΅ΠΉΡΠ΅ΠΌ Π»Π΅Π³ΠΊΠΎ ΡΠΌΠΎΠ΅ΡΡΡ Π²Π»Π°ΠΆΠ½ΠΎΠΉ ΡΡΡΠΏΠΎΡΠΊΠΎΠΉ.
ΠΠ»Ρ Π·Π°ΠΊΡΡΡΠΈΡ ΠΏΠΎΡΠ»Π΅Π΄Π½Π΅ΠΉ Π»Π°ΠΌΠ΅Π»ΠΈ Π²Π°ΠΌ ΠΏΠΎΡΡΠ΅Π±ΡΡΡΡΡ ΠΈΠ»ΠΈ ΡΠΈΠ»ΡΠ½ΡΠ΅ ΡΡΠΊΠΈ ΠΈ ΡΠ½ΠΎΡΠΎΠ²ΠΊΠ°, ΠΈΠ»ΠΈ ΡΠΏΠ΅ΡΠΈΠ°Π»ΡΠ½Π°Ρ ΡΠΊΠΎΠ±Π° Π΄Π»Ρ ΡΠ³ΠΎΠ½Π° Π»Π°ΠΌΠΈΠ½Π°ΡΠ° ΠΈ ΠΏΠ°ΡΠΊΠ΅ΡΠ½ΠΎΠΉ Π΄ΠΎΡΠΊΠΈ. Π Π»ΡΠ±ΠΎΠΌ ΡΠ»ΡΡΠ°Π΅ Π½Π΅Β Π·Π°Π±ΡΠ²Π°ΠΉΡΠ΅,Β ΡΡΠΎ ΡΠ΄Π°ΡΡ Π΄ΠΎΠ»ΠΆΠ½Ρ Π±ΡΡΡ Π»Π΅Π³ΠΊΠΈΠΌΠΈ ΠΈ ΠΏΠ»Π°Π²Π½ΡΠΌΠΈ (ΠΏΠ΅ΡΠ΅Π΄Π°ΡΡΠΈΠΌΠΈΒ Π΄Π²ΠΈΠΆΠ΅Π½ΠΈΠ΅ ΠΏΠΎ ΠΈΠ½Π΅ΡΡΠΈΠΈ,Β Π° Π½Π΅Β ΡΠ΅Π·ΠΊΠΈΠ΅ ΡΠ΄Π°ΡΡ). ΠΡΠ»ΠΈ Π²Ρ ΡΠΊΠ»Π°Π΄ΡΠ²Π°Π΅ΡΠ΅ Π»Π°ΠΌΠΈΠ½Π°Ρ ΠΏΠΎΠ΄ Ρ ΡΠ΄ΠΎΠΆΠ΅ΡΡΠ²Π΅Π½Π½ΡΠΉ ΠΏΠ°ΡΠΊΠ΅Ρ, ΡΠΎ ΠΏΠΎΡΠΈΡΠ°ΠΉΡΠ΅ ΡΡΠ°ΡΡΡ ΠΏΠ΅ΡΠ΅ΠΉΠ΄Ρ ΠΏΠΎ ΡΡΡΠ»ΠΊΠ΅. Π‘ΠΎΠ±ΡΡΠ²Π΅Π½Π½ΠΎ Π²ΠΎΡ ΡΠ°ΠΊ Π²ΡΠ΅ ΠΈ Π»Π΅Π³ΠΊΠΎ, ΠΈ Π½Π΅ ΠΏΡΠΎΡΡΠΎ, Π½ΠΎ ΡΠ΅Π·ΡΠ»ΡΡΠ°Ρ ΡΠΎΠ³ΠΎ ΡΡΠΎΠΈΡ! ΠΡΠ» ΡΠ°Π΄ ΠΏΠΎΠΌΠΎΡΡ ΠΠ°ΠΌ Π² Π½Π΅Π»Π΅Π³ΠΊΠΎΠΌ Π΄Π΅Π»Π΅!
Π‘ Π£Π²Π°ΠΆΠ΅Π½ΠΈΠ΅ΠΌ, Meteor
Π‘ΠΏΠ΅ΡΠΈΠ°Π»ΡΠ½ΠΎ Π΄Π»Ρ ΠΈΠ½ΡΠ΅ΡΠ½Π΅Ρ ΠΌΠ°Π³Π°Π·ΠΈΠ½Π° BSpol.ru
Π£ΠΊΠ»Π°Π΄ΡΠ²Π°Π΅ΠΌ Π»Π°ΠΌΠΈΠ½Π°Ρ: ΠΊΠ°ΠΊ ΠΏΡΠ°Π²ΠΈΠ»ΡΠ½ΠΎ ΠΊΠ»Π°ΡΡΡ Π»Π°ΠΌΠΈΠ½Π°Ρ
ΠΠ±ΠΈΠ΄Π½ΠΎ, ΠΊΠΎΠ³Π΄Π° Π²ΡΠΊΠΎΡΠ΅ ΠΏΠΎΡΠ»Π΅ ΠΎΠΊΠΎΠ½ΡΠ°Π½ΠΈΡ ΡΠ΅ΠΌΠΎΠ½ΡΠ° ΡΡΡΠ΅ΠΊΡΠ½ΠΎΠ΅ ΠΈ ΠΏΠΎΡΠΎΠΉ Π΄ΠΎΠ²ΠΎΠ»ΡΠ½ΠΎ Π΄ΠΎΡΠΎΠ³ΠΎΠ΅ Π½Π°ΠΏΠΎΠ»ΡΠ½ΠΎΠ΅ ΠΏΠΎΠΊΡΡΡΠΈΠ΅ Π΄Π΅ΡΠΎΡΠΌΠΈΡΡΠ΅ΡΡΡ ΠΈΠ»ΠΈ ΡΠ°ΡΡΡΡ Π°Π΅ΡΡΡ. ΠΠ°ΠΊ ΠΎΠ±ΠΎΠΉΡΠΈΡΡ Π±Π΅Π· ΡΠ°ΠΊΠΈΡ Π½Π΅ΠΏΡΠΈΡΡΠ½ΠΎΡΡΠ΅ΠΉ?
ΠΠ° ΡΠΎΡΠΎ:
Π§ΡΠΎ Π΄Π΅Π»Π°ΡΡ Β«Π³ΠΎΡΠ΅-ΠΌΠ°ΡΡΠ΅ΡΠ°Β»?
1. ΠΠ΅Β ΡΠΈΡΠ°ΡΡ ΠΈΠ½ΡΡΡΡΠΊΡΠΈΠΉ ΠΊΒ Π½Π°ΠΏΠΎΠ»ΡΠ½ΡΠΌ ΠΏΠΎΠΊΡΡΡΠΈΡΠΌ. ΠΠ½Π°Π½ΠΈΡ ΠΎΒ ΡΠΎΠΌ, ΠΊΠ°ΠΊ ΠΏΡΠ°Π²ΠΈΠ»ΡΠ½ΠΎ ΡΡΠ΅Π»ΠΈΡΡ Π»Π°ΠΌΠΈΠ½Π°Ρ ΠΈΒ ΠΏΠ°ΡΠΊΠ΅Ρ, Π°Β ΡΠ°ΠΊΠΆΠ΅ ΡΠΎΡΠ½ΠΎΠ΅ ΡΠΎΠ±Π»ΡΠ΄Π΅Π½ΠΈΠ΅ ΡΠΊΠ°Π·Π°Π½Π½ΡΡ
Π²Β ΠΈΠ½ΡΡΡΡΠΊΡΠΈΠΈ ΡΡΠ΅Π±ΠΎΠ²Π°Π½ΠΈΠΉ ΠΏΠΎΠ·Π²ΠΎΠ»ΡΠ΅Ρ ΠΈΠ·Π±Π΅ΠΆΠ°ΡΡ ΠΌΠ°ΡΡΡ ΠΏΡΠΎΠ±Π»Π΅ΠΌ ΠΏΡΠΈ ΡΠΊΠ»Π°Π΄ΠΊΠ΅, ΡΠΊΡΠΏΠ»ΡΠ°ΡΠ°ΡΠΈΠΈ ΠΈΒ Π³Π°ΡΠ°Π½ΡΠΈΠΉΠ½ΠΎΠΌ ΠΎΠ±ΡΠ»ΡΠΆΠΈΠ²Π°Π½ΠΈΠΈ.
2. ΠΠ΅Β Π΄ΠΎΠΆΠΈΠ΄Π°ΡΡΡΡ ΠΏΠΎΠ»Π½ΠΎΠ³ΠΎ Π²ΡΡΡΡ Π°Π½ΠΈΡ ΠΎΡΠ½ΠΎΠ²Π°Π½ΠΈΡ. ΠΡΡΠ°Π²Π½ΠΈΠ²Π°Π½ΠΈΠ΅ ΠΏΠΎΠ»Π° Π½Π΅Β ΠΎΠ±Ρ ΠΎΠ΄ΠΈΡΡΡ Π±Π΅Π· Π²ΠΎΠ΄Ρ, ΠΊΠΎΡΠΎΡΠ°Ρ Π½Π΅ΠΎΠ±Ρ ΠΎΠ΄ΠΈΠΌΠ° Π΄Π»Ρ ΡΠ΅ΠΌΠ΅Π½ΡΠ½ΡΡ ΡΠΎΠ²Π½ΠΈΡΠ΅Π»Π΅ΠΉ ΠΈΒ ΡΠ°ΠΌΠΎΠ²ΡΡΠ°Π²Π½ΠΈΠ²Π°ΡΡΠΈΡ ΡΡ ΡΠΌΠ΅ΡΠ΅ΠΉ. ΠΠ΅ΡΡ Π½ΠΈΠΉ ΡΠ»ΠΎΠΉ ΡΡΠ°Π½ΠΎΠ²ΠΈΡΡΡ ΡΡΡ ΠΈΠΌ ΠΎΡΠ΅Π½Ρ Π±ΡΡΡΡΠΎ, Π·Π°ΡΡΠ°Π²Π»ΡΡ Π½Π΅ΠΏΡΠΎΡΠ΅ΡΡΠΈΠΎΠ½Π°Π»ΠΎΠ² Π΄ΡΠΌΠ°ΡΡ, ΡΡΠΎ ΠΈΒ ΠΎΡΠ½ΠΎΠ²Π°Π½ΠΈΠ΅ Π³ΠΎΡΠΎΠ²ΠΎ. ΠΠ°Β ΡΠ°ΠΌΠΎΠΌΒ ΠΆΠ΅ Π΄Π΅Π»Π΅ Π²Β ΡΡΠ΅Π΄Π½Π΅ΠΌ 1Β ΡΠΌ ΡΠ΅ΠΌΠ΅Π½ΡΠ½ΠΎΠΉ ΡΡΡΠΆΠΊΠΈ ΡΠΎΠ»ΡΠΈΠ½ΠΎΠΉ 4Β ΡΠΌ Π²ΡΡΡΡ Π°Π΅Ρ Π·Π°Β Π½Π΅Π΄Π΅Π»Ρ, Π°Β ΠΊΠ°ΠΆΠ΄ΡΠΉ ΠΏΠΎΡΠ»Π΅Π΄ΡΡΡΠΈΠΉΒ β ΠΏΡΠΈΠΌΠ΅ΡΠ½ΠΎ Π·Π°Β 1,5-2Β Π½Π΅Π΄Π΅Π»ΠΈ. Π§ΡΠΎΠ±Ρ ΠΏΡΠ°Π²ΠΈΠ»ΡΠ½ΠΎ ΠΏΠΎΠ»ΠΎΠΆΠΈΡΡ Π»Π°ΠΌΠΈΠ½Π°Ρ ΠΈΒ ΠΏΠ°ΡΠΊΠ΅Ρ, Π½Π΅ΠΎΠ±Ρ ΠΎΠ΄ΠΈΠΌΠΎ ΡΠΎΠ²Π½ΠΎΠ΅ ΠΈΒ Π°Π±ΡΠΎΠ»ΡΡΠ½ΠΎ ΡΡΡ ΠΎΠ΅ ΠΎΡΠ½ΠΎΠ²Π°Π½ΠΈΠ΅, ΠΈΠ½Π°ΡΠ΅ ΡΠ°Π·Π±ΡΡ Π°Π½ΠΈΠ΅, ΡΠ°ΡΡΠ»ΠΎΠ΅Π½ΠΈΠ΅ ΠΈΒ Π΄Π΅ΡΠΎΡΠΌΠ°ΡΠΈΡ ΠΊΡΠ°Π΅Π² ΠΏΠΎΠΊΡΡΡΠΈΡ Π½Π΅ΠΈΠ·Π±Π΅ΠΆΠ½Ρ.
5. ΠΠ³Π½ΠΎΡΠΈΡΡΡΡ Β«ΠΏΠΎΠ³ΠΎΠ΄Ρ Π² Π΄ΠΎΠΌΠ΅Β». ΠΡΠ°Π²ΠΈΠ»Π° ΡΠΊΠ»Π°Π΄ΠΊΠΈ Π»Π°ΠΌΠΈΠ½Π°ΡΠ°ΡΠΊΠ°Π·Π°Π½Ρ Π² ΠΈΠ½ΡΡΡΡΠΊΡΠΈΠΈ. ΠΠΏΡΠΈΠΌΠ°Π»ΡΠ½ΡΠ΅ ΠΏΠ°ΡΠ°ΠΌΠ΅ΡΡΡ Π²ΠΎΠ·Π΄ΡΡ Π° ΠΏΡΠΈ ΡΠΊΠ»Π°Π΄ΠΊΠ΅ ΠΏΠΎΠΊΡΡΡΠΈΡ: Π²Π»Π°ΠΆΠ½ΠΎΡΡΡ 40-60%; ΡΠ΅ΠΌΠΏΠ΅ΡΠ°ΡΡΡΠ° Π½Π΅ ΠΌΠ΅Π½Π΅Π΅ 18Β°Π‘; ΡΠ΅ΠΌΠΏΠ΅ΡΠ°ΡΡΡΠ° ΠΎΡΠ½ΠΎΠ²Π°Π½ΠΈΡ Π½Π΅ ΠΌΠ΅Π½Π΅Π΅ 15Β°Π‘. ΠΡΠ»ΠΈ ΡΡΠ»ΠΎΠ²ΠΈΡ ΠΎΡΠ»ΠΈΡΠ°ΡΡΡΡ ΠΎΡ ΡΠ΅ΠΊΠΎΠΌΠ΅Π½Π΄ΠΎΠ²Π°Π½Π½ΡΡ , ΠΎΡΠ²Π΅ΡΡΡΠ²Π΅Π½Π½ΠΎΡΡΡ Π·Π° Π΄Π΅ΡΠΎΡΠΌΠ°ΡΠΈΡ Π½Π°ΠΏΠΎΠ»ΡΠ½ΠΎΠ³ΠΎ ΠΏΠΎΠΊΡΡΡΠΈΡ Π½Π΅ ΠΏΠΎΠ½Π΅ΡΡΡ Π½ΠΈ ΠΏΡΠΎΠΈΠ·Π²ΠΎΠ΄ΠΈΡΠ΅Π»Ρ, Π½ΠΈ ΠΏΡΠΎΠ΄Π°Π²Π΅Ρ.
ΠΠ° ΡΠΎΡΠΎ: ΠΏΠ°ΡΠΊΠ΅ΡΠ½Π°Ρ Π΄ΠΎΡΠΊΠ° Rovere naturale ΡΠ°Π±ΡΠΈΠΊΠΈ Garofoli.
3. ΠΠ΅Β ΠΏΠΎΠ΄Π³ΠΎΡΠ°Π²Π»ΠΈΠ²Π°ΡΡ ΠΏΠΎΠΌΠ΅ΡΠ΅Π½ΠΈΠ΅. ΠΡΠ°Π²ΠΈΠ»ΡΠ½Π°Ρ ΡΠΊΠ»Π°Π΄ΠΊΠ° Π»Π°ΠΌΠΈΠ½Π°ΡΠ° ΠΈΒ ΠΏΠ°ΡΠΊΠ΅ΡΠ° ΡΡΠ΅Π±ΡΠ΅Ρ ΠΏΡΠΎΡΠ°ΠΏΠ»ΠΈΠ²Π°Π½ΠΈΡ ΠΈΒ ΠΏΡΠΎΠ²Π΅ΡΡΠΈΠ²Π°Π½ΠΈΡ ΠΏΠΎΠΌΠ΅ΡΠ΅Π½ΠΈΡ Π²Β ΡΠ΅ΡΠ΅Π½ΠΈΠ΅ ΠΌΠ΅ΡΡΡΠ°. Π’ΠΎΠ»ΡΠΊΠΎ Π²Β ΡΡΠΎΠΌ ΡΠ»ΡΡΠ°Π΅ ΡΠΎΠ΄Π΅ΡΠΆΠ°Π½ΠΈΠ΅ Π²Π»Π°Π³ΠΈ Π²Β ΠΏΠΎΠΊΡΡΡΠΈΡΡ ΡΠ½ΠΈΠ·ΠΈΡΡΡ Π΄ΠΎΒ 2-3% ΠΈΒ ΡΡΠ°Π½Π΅Ρ ΠΎΠΏΡΠΈΠΌΠ°Π»ΡΠ½ΡΠΌ.
4. ΠΠ΅ΠΏΡΠ°Π²ΠΈΠ»ΡΠ½ΠΎ Ρ ΡΠ°Π½ΡΡ ΠΌΠ°ΡΠ΅ΡΠΈΠ°Π». ΠΠ΅Π»ΡΠ·Ρ ΠΎΡΡΠ°Π²Π»ΡΡΡ Π»Π°ΠΌΠΈΠ½Π°Ρ ΠΈΠ»ΠΈ ΠΏΠ°ΡΠΊΠ΅Ρ Π²Β ΠΊΠΎΠΌΠ½Π°ΡΠ΅ ΡΒ ΠΏΠΎΠ²ΡΡΠ΅Π½Π½ΠΎΠΉ Π²Π»Π°ΠΆΠ½ΠΎΡΡΡΡ: ΠΎΠ½ΠΈ Π²ΠΏΠΈΡΠ°ΡΡ Π²Π»Π°Π³Ρ ΠΈΠ·Β Π²ΠΎΠ·Π΄ΡΡ Π°, ΡΠ²Π΅Π»ΠΈΡΠ°ΡΡΡ ΠΈΒ Π΄Π΅ΡΠΎΡΠΌΠΈΡΡΡΡΡΡ. ΠΒ Π΅ΡΠ»ΠΈ Π΄Π΅ΡΠΆΠ°ΡΡ Π»Π°ΠΌΠΈΠ½Π°Ρ ΠΈΠ»ΠΈ ΠΏΠ°ΡΠΊΠ΅Ρ ΠΏΡΠΈ Π½ΠΈΠ·ΠΊΠΎΠΉ Π²Π»Π°ΠΆΠ½ΠΎΡΡΠΈ, Π²ΠΏΠΎΡΠ»Π΅Π΄ΡΡΠ²ΠΈΠΈ ΠΏΠ»Π°Π½ΠΊΠΈ ΡΠΎΠΆΠΌΡΡΡΡ, ΠΎΠ±Π½Π°ΠΆΠ°Ρ ΡΠ΅Π»ΠΈ. ΠΡΠΈ ΠΈΠ·ΠΌΠ΅Π½Π΅Π½ΠΈΡ ΡΠ°ΡΠ΅ Π²ΡΠ΅Π³ΠΎ Π½Π΅ΠΎΠ±ΡΠ°ΡΠΈΠΌΡ.
6. ΠΠ΅Β Π΄Π°ΡΡ Π°ΠΊΠΊΠ»ΠΈΠΌΠ°ΡΠΈΠ·ΠΈΡΠΎΠ²Π°ΡΡΡΡ. ΠΠΎΒ Π²ΡΠ΅Ρ ΠΈΠ½ΡΡΡΡΠΊΡΠΈΡΡ , ΡΠΊΠ°Π·ΡΠ²Π°ΡΡΠΈΡ , ΠΊΠ°ΠΊ ΠΏΡΠ°Π²ΠΈΠ»ΡΠ½ΠΎ ΡΠΊΠ»Π°Π΄ΡΠ²Π°ΡΡ Π»Π°ΠΌΠΈΠ½Π°Ρ ΠΈΒ ΠΏΠ°ΡΠΊΠ΅ΡΠ½ΡΡ Π΄ΠΎΡΠΊΡ, ΡΠΊΠ°Π·Π°Π½ΠΎ ΠΎΒ Π²Π°ΠΆΠ½ΠΎΡΡΠΈ Π°ΠΊΠΊΠ»ΠΈΠΌΠ°ΡΠΈΠ·Π°ΡΠΈΠΈ ΠΌΠ°ΡΠ΅ΡΠΈΠ°Π»ΠΎΠ² Π΄Π»Ρ Π½Π°ΠΏΠΎΠ»ΡΠ½ΠΎΠ³ΠΎ ΠΏΠΎΠΊΡΡΡΠΈΡ. ΠΠΎΒ ΠΊΠ°ΠΊ ΠΏΡΠ°Π²ΠΈΠ»ΡΠ½ΠΎ ΡΠ»ΠΎΠΆΠΈΡΡ Π»Π°ΠΌΠΈΠ½Π°Ρ Π²Β ΠΌΠ΅Π½ΡΡΡΠΈΡ ΡΡ ΡΡΠ»ΠΎΠ²ΠΈΡΡ ? ΠΡΠ²Π΅Ρ ΠΏΡΠΎΡΡ: ΡΠΊΠ»Π°Π΄ΡΠ²Π°Π΅ΠΌ Π»Π°ΠΌΠΈΠ½Π°Ρ Π²Β ΠΏΠΎΡΠ»Π΅Π΄Π½ΡΡ ΠΎΡΠ΅ΡΠ΅Π΄Ρ, ΠΊΠΎΠ³Π΄Π° ΠΎΡΠ΄Π΅Π»ΠΎΡΠ½ΡΠ΅ ΡΠ°Π±ΠΎΡΡ Π·Π°ΠΊΠΎΠ½ΡΠ΅Π½Ρ ΠΈΒ ΡΡΠ»ΠΎΠ²ΠΈΡ ΠΏΡΠΈΠ±Π»ΠΈΠΆΠ΅Π½Ρ ΠΊΒ Π½ΠΎΡΠΌΠ°Π»ΡΠ½ΡΠΌ.
7. ΠΠΎΠ²Π΅ΡΡΡΡ ΡΠΊΠ»Π°Π΄ΠΊΡ Π½ΠΈΠ·ΠΊΠΎΠΊΠ²Π°Π»ΠΈΡΠΈΡΠΈΡΠΎΠ²Π°Π½Π½ΡΠΌ ΡΠ°Π±ΠΎΡΠΈΠΌ.
Π‘Π°ΠΌΡΠΉ ΡΡΡΠ΅ΠΊΡΠΈΠ²Π½ΡΠΉ ΡΠΏΠΎΡΠΎΠ± Π½Π°Π±Π΅Π΄ΠΎΠΊΡΡΠΈΡΡΒ β Π΄Π΅Π»Π΅Π³ΠΈΡΠΎΠ²Π°ΡΡ ΡΠΊΠ»Π°Π΄ΠΊΡ Π½Π°ΠΏΠΎΠ»ΡΠ½ΠΎΠ³ΠΎ ΠΏΠΎΠΊΡΡΡΠΈΡ Π»ΡΠ΄ΡΠΌ, ΠΊΠΎΡΠΎΡΡΠ΅ ΠΈΠΌΠ΅ΡΡ ΠΎΠ±Β ΡΡΠΎΠΌ ΡΠΎΠ»ΡΠΊΠΎ ΠΏΡΠΈΠ±Π»ΠΈΠ·ΠΈΡΠ΅Π»ΡΠ½ΡΠ΅ ΠΏΡΠ΅Π΄ΡΡΠ°Π²Π»Π΅Π½ΠΈΡ. ΠΡΠΎΡΠ΅ΡΡΠΈΠΎΠ½Π°Π»Β β ΡΡΠΎ Π½Π΅Β ΡΠΎΡ, ΠΊΡΠΎ Π½Π΅Β Π·Π°Π³Π»ΡΠ΄ΡΠ²Π°Π΅Ρ Π²Β ΠΈΠ½ΡΡΡΡΠΊΡΠΈΡ ΠΏΡΠΎΠΈΠ·Π²ΠΎΠ΄ΠΈΡΠ΅Π»Ρ, Π°Β ΡΠΎΡ, ΠΊΡΠΎ ΡΠΏΠΎΡΠΎΠ±Π΅Π½ Π±Π΅Π·ΡΠΊΠΎΡΠΈΠ·Π½Π΅Π½Π½ΠΎ ΡΠ»Π΅Π΄ΠΎΠ²Π°ΡΡ ΡΠ΅ΠΊΠΎΠΌΠ΅Π½Π΄Π°ΡΠΈΡΠΌ, ΠΊΠ°ΠΊ ΠΏΡΠ°Π²ΠΈΠ»ΡΠ½ΠΎ ΠΏΠΎΡΡΠ΅Π»ΠΈΡΡ Π»Π°ΠΌΠΈΠ½Π°Ρ ΠΈΒ ΠΏΠ°ΡΠΊΠ΅Ρ.
8. ΠΠ΅Β ΠΏΠΎΠ΄Π΄Π΅ΡΠΆΠΈΠ²Π°ΡΡ ΠΎΠΏΡΠΈΠΌΠ°Π»ΡΠ½ΡΠ΅ ΡΡΠ»ΠΎΠ²ΠΈΡ ΡΠΊΡΠΏΠ»ΡΠ°ΡΠ°ΡΠΈΠΈ. ΠΠ°Π»ΠΎ Π²ΡΡΡΠ½ΠΈΡΡ, ΠΊΠ°ΠΊ ΠΏΡΠ°Π²ΠΈΠ»ΡΠ½ΠΎ ΡΠΊΠ»Π°Π΄ΡΠ²Π°ΡΡ Π»Π°ΠΌΠΈΠ½Π°Ρ, Π½ΡΠΆΠ½ΠΎ Π΅ΡΠ΅ Π°ΠΊΠΊΡΡΠ°ΡΠ½ΠΎ ΠΏΠΎΠ»ΡΠ·ΠΎΠ²Π°ΡΡΡΡ Π½ΠΎΠ²ΡΠΌ ΠΏΠΎΠ»ΠΎΠΌ. ΠΠΎΠ΄Π΄Π΅ΡΠΆΠΈΠ²Π°ΡΡ Π²Β Π΄ΠΎΠΌΠ΅ ΠΎΡΠ½ΠΎΡΠΈΡΠ΅Π»ΡΠ½ΡΡ Π²Π»Π°ΠΆΠ½ΠΎΡΡΡ Π²ΠΎΠ·Π΄ΡΡ Π° 40-60% (Π²Β ΠΎΡΠΎΠΏΠΈΡΠ΅Π»ΡΠ½ΡΠΉ ΡΠ΅Π·ΠΎΠ½ Π½Π΅Β ΠΎΠ±ΠΎΠΉΡΠΈΡΡ Π±Π΅Π· ΡΠ²Π»Π°ΠΆΠ½ΠΈΡΠ΅Π»Ρ!) ΠΈΒ ΠΊΠΎΠΌΡΠΎΡΡΠ½ΡΡ ΡΠ΅ΠΌΠΏΠ΅ΡΠ°ΡΡΡΡ 18-24Β°Π‘. ΠΒ ΡΠ΅Π·ΠΆΠ°Ρ Π²Β ΠΎΡΠΏΡΡΠΊ Π²Β ΡΡΡ ΠΎΠ΅ Π²ΡΠ΅ΠΌΡ Π³ΠΎΠ΄Π°, ΡΠ½ΠΈΠ·ΠΈΡΡ ΡΠ΅ΠΌΠΏΠ΅ΡΠ°ΡΡΡΡ Π²Β Π΄ΠΎΠΌΠ΅ Π΄ΠΎΒ 15-18Β°Π‘, ΡΡΠΎΠ±Ρ ΠΎΠ±Π΅ΡΠΏΠ΅ΡΠΈΡΡ ΠΏΡΠΈΠ΅ΠΌΠ»Π΅ΠΌΡΠΉ ΡΡΠΎΠ²Π΅Π½Ρ Π²Π»Π°ΠΆΠ½ΠΎΡΡΠΈ.
ΠΠ°ΠΊ ΠΊΠ»Π°ΡΡΡ ΠΏΠΎΠ΄Π»ΠΎΠΆΠΊΡ ΠΏΠΎΠ΄ Π»Π°ΠΌΠΈΠ½Π°Ρ ΡΠ²ΠΎΠΈΠΌΠΈ ΡΡΠΊΠ°ΠΌΠΈ
Π‘Π°ΠΌΠΎΡΡΠΎΡΡΠ΅Π»ΡΠ½ΡΠΉ ΡΠ΅ΠΌΠΎΠ½Ρ ΡΠΏΠΎΡΠΎΠ±Π΅Π½ ΡΠΊΠΎΠ½ΠΎΠΌΠΈΡΡ ΡΡΠ΅Π΄ΡΡΠ²Π° β ΡΡΠΎ ΡΠ°ΠΊΡ. Π£ΠΊΠ»Π°Π΄ΠΊΠ° Π»Π°ΠΌΠΈΠ½Π°ΡΠ° β Π½Π΅ ΠΈΡΠΊΠ»ΡΡΠ΅Π½ΠΈΠ΅, ΡΡΠΈΡΡΠ²Π°Ρ, ΡΡΠΎ ΡΠ°ΠΌΠΎ ΠΏΠΎΠΊΡΡΡΠΈΠ΅ Π΄ΠΎΡΠΎΠ³ΠΎΡΡΠΎΡΡΠ΅Π΅ ΠΈ ΡΡΠ΅Π±ΡΠ΅Ρ ΠΊΠΎΠΌΠΏΠ»Π΅ΠΊΡΡΡΡΠΈΡ
. ΠΡΠΎΡΠ΅ΡΡ Π½Π΅ ΠΎΠ±Ρ
ΠΎΠ΄ΠΈΡΡΡ Π±Π΅Π· Π½Π°ΡΡΠΈΠ»Π° ΠΏΠΎΠ΄Π»ΠΎΠΆΠΊΠΈ.
ΠΠ°ΠΊ ΡΡΠΎ ΡΠ΄Π΅Π»Π°ΡΡ β ΡΠΌΠΎΡΡΠΈΡΠ΅ Π·Π΄Π΅ΡΡ
Π‘Π°ΠΌΠΎΡΡΠΎΡΡΠ΅Π»ΡΠ½ΡΠΉ ΡΠ΅ΠΌΠΎΠ½Ρ ΡΠΏΠΎΡΠΎΠ±Π΅Π½ ΡΠΊΠΎΠ½ΠΎΠΌΠΈΡΡ ΡΡΠ΅Π΄ΡΡΠ²Π° β ΡΡΠΎ ΡΠ°ΠΊΡ. Π£ΠΊΠ»Π°Π΄ΠΊΠ° Π»Π°ΠΌΠΈΠ½Π°ΡΠ° β Π½Π΅ ΠΈΡΠΊΠ»ΡΡΠ΅Π½ΠΈΠ΅, ΡΡΠΈΡΡΠ²Π°Ρ, ΡΡΠΎ ΡΠ°ΠΌΠΎ ΠΏΠΎΠΊΡΡΡΠΈΠ΅ Π΄ΠΎΡΠΎΠ³ΠΎΡΡΠΎΡΡΠ΅Π΅ ΠΈ ΡΡΠ΅Π±ΡΠ΅Ρ ΠΊΠΎΠΌΠΏΠ»Π΅ΠΊΡΡΡΡΠΈΡ . ΠΡΠΎΡΠ΅ΡΡ Π½Π΅ ΠΎΠ±Ρ ΠΎΠ΄ΠΈΡΡΡ Π±Π΅Π· Π½Π°ΡΡΠΈΠ»Π° ΠΏΠΎΠ΄Π»ΠΎΠΆΠΊΠΈ. ΠΠ°ΠΊ ΡΡΠΎ ΡΠ΄Π΅Π»Π°ΡΡ β ΠΎΠΏΠΈΡΠ°Π½ΠΎ Π½ΠΈΠΆΠ΅.
Π‘ΠΎΠ΄Π΅ΡΠΆΠ°Π½ΠΈΠ΅:
ΠΠ°ΠΊΡΡ ΠΏΠΎΠ΄Π»ΠΎΠΆΠΊΡ Π²ΡΠ±ΡΠ°ΡΡ ΠΏΠΎΠ΄ Π»Π°ΠΌΠΈΠ½Π°Ρ
ΠΠ½ΡΡΡΡΠΊΡΠΈΡ ΠΏΠΎ ΠΌΠΎΠ½ΡΠ°ΠΆΡ ΠΏΠΎΠ΄Π»ΠΎΠΆΠΊΠΈ ΠΏΠΎΠ΄ Π»Π°ΠΌΠΈΠ½Π°Ρ
ΠΠ°ΠΊΠ»ΡΡΠ΅Π½ΠΈΠ΅
ΠΠ°ΠΊΡΡ ΠΏΠΎΠ΄Π»ΠΎΠΆΠΊΡ Π²ΡΠ±ΡΠ°ΡΡ ΠΏΠΎΠ΄ Π»Π°ΠΌΠΈΠ½Π°Ρ
Π’Π°ΠΊ ΠΊΠ°ΠΊ Π°ΡΡΠΎΡΡΠΈΠΌΠ΅Π½Ρ ΠΏΠΎΠ΄ΠΎΠ±Π½ΠΎΠ³ΠΎ ΡΡΡΠΎΠΈΡΠ΅Π»ΡΠ½ΠΎΠ³ΠΎ ΠΊΠΎΠΌΠΏΠ»Π΅ΠΊΡΡΡΡΠ΅Π³ΠΎ ΠΌΠ½ΠΎΠ³ΠΎΠΎΠ±ΡΠ°Π·Π΅Π½, ΡΠΎ Π²ΠΎΠΏΡΠΎΡ β ΡΡΠΎ Π»ΡΡΡΠ΅ β Π·Π°ΠΊΠΎΠ½ΠΎΠΌΠ΅ΡΠ΅Π½. ΠΡ ΡΡΠ΅Π±ΠΎΠ²Π°Π½ΠΈΠΉ ΠΊ ΠΏΠΎΠ΄Π»ΠΎΠΆΠΊΠ΅ Π±ΡΠ΄Π΅Ρ Π·Π°Π²ΠΈΡΠ΅ΡΡ Π½Π΅ ΡΠΎΠ»ΡΠΊΠΎ ΠΊΠΎΠΌΡΠΎΡΡ Π΄ΠΎΠΌΠ°, Π½ΠΎ ΠΈ Π΄ΠΎΠ»Π³ΠΎΠ²Π΅ΡΠ½ΠΎΡΡΡ Π½Π°ΠΏΠΎΠ»ΡΠ½ΠΎΠ³ΠΎ ΠΏΠΎΠΊΡΡΡΠΈΡ β Π»Π°ΠΌΠΈΠ½Π°ΡΠ°. Π Π°ΡΡΠΌΠΎΡΡΠΈΠΌ ΠΏΠΎΠΏΡΠ»ΡΡΠ½ΡΠ΅ Π²ΠΈΠ΄Ρ:
ΠΡΠΎΠ±ΠΊΠ° ΠΈ Ρ Π²ΠΎΡ
ΠΠΎΠΊΡΡΡΠΈΡ ΠΏΡΠ΅Π΄ΡΡΠ°Π²Π»Π΅Π½Ρ ΡΡΠ»ΠΎΠ½Π½ΡΠΌ ΠΏΠΎΠ»ΠΎΡΠ½ΠΎΠΌ ΠΈ ΠΏΡΠ΅ΡΡ-ΠΏΠ»ΠΈΡΠ°ΠΌΠΈ ΡΠΎΠΎΡΠ²Π΅ΡΡΡΠ²Π΅Π½Π½ΠΎ.
SONY DSCΠΠΎΡΡΠΎΠΈΠ½ΡΡΠ²Π° ΠΎΠ±ΠΎΠΈΡ
Π² ΡΠΊΠΎΠ»ΠΎΠ³ΠΈΡΠ½ΠΎΡΡΠΈ ΠΈ Ρ
ΠΎΡΠΎΡΠΈΡ
ΡΠ΅ΠΏΠ»ΠΎΠΈΠ·ΠΎΠ»ΡΡΠΈΠΎΠ½Π½ΡΡ
ΠΏΠΎΠΊΠ°Π·Π°ΡΠ΅Π»ΡΡ
β ΠΏΠΎΠ΄ Π½ΠΈΡ
Π½Π΅ ΠΌΠΎΠ½ΡΠΈΡΡΡΡ ΡΠ΅ΠΏΠ»ΡΠΉ ΠΏΠΎΠ». Π₯Π²ΠΎΠΉΠ½ΡΠ΅ ΠΏΠ»ΠΈΡΠΊΠΈ ΡΠ°ΠΊΠΆΠ΅ ΠΎΠ±Π»Π°Π΄Π°ΡΡ Π·Π²ΡΠΊΠΎΠΈΠ·ΠΎΠ»ΡΡΠΈΠΎΠ½Π½ΡΠΌ ΡΠ²ΠΎΠΉΡΡΠ²ΠΎΠΌ.
ΠΠΎ Π½Π΅Π΄ΠΎΡΡΠ°ΡΠΊΠΈ Ρ Π΄Π²ΡΡ
Π½Π°ΡΡΡΠ°Π»ΡΠ½ΡΡ
ΠΏΠΎΠ΄Π»ΠΎΠΆΠ΅ΠΊ, ΡΡΡΠ΅ΡΡΠ²Π΅Π½Π½Ρ:
1. ΠΠ±ΡΠΎΠ»ΡΡΠ½ΠΎΠ΅ Π½Π΅ΠΏΡΠΈΡΡΠΈΠ΅ ΠΏΠ°ΡΠ° ΠΈ Π²Π»Π°Π³ΠΈ. ΠΠ±Π° Π²ΠΈΠ΄Π° Π³ΠΈΠ³ΡΠΎΡΠΊΠΎΠΏΠΈΡΠ½Ρ, ΠΎΡΡΠ΅Π³ΠΎ ΠΏΠ»Π΅ΡΠ΅Π½Ρ Π½Π΅ Π·Π°ΠΌΠ΅Π΄Π»ΠΈΡ ΠΏΠΎΡΠ²ΠΈΡΡΡΡ ΠΏΠΎΠ΄ Π»Π°ΠΌΠΈΠ½Π°ΡΠΎΠΌ.
2. ΠΡΠ»ΠΈ Π² ΠΊΠΎΠΌΠ½Π°ΡΠ΅ ΡΠΌΠΎΠ½ΡΠΈΡΠΎΠ²Π°Π½ ΡΠ΅ΠΏΠ»ΡΠΉ ΠΏΠΎΠ», ΡΠΎ ΠΎΡ Π½Π°ΡΡΡΠ°Π»ΡΠ½ΡΡ
ΠΏΠΎΠ΄Π»ΠΎΠΆΠ΅ΠΊ ΠΎΡΠΊΠ°Π·ΡΠ²Π°ΡΡΡΡ. Π ΡΠΈΠ»Ρ ΡΠ²ΠΎΠ΅ΠΉ ΠΏΡΠΈΡΠΎΠ΄Ρ ΡΠ΅Π»ΠΎ ΠΌΠ°ΡΠ΅ΡΠΈΠ°Π»Π° Π±ΡΠ΄Π΅Ρ ΠΏΠΎΠ΄Π²Π΅ΡΠ³Π°ΡΡΡΡ ΠΏΠΎΡΡΠΎΡΠ½Π½ΡΠΌ ΠΈΠ·ΠΌΠ΅Π½Π΅Π½ΠΈΡΠΌ β ΡΡΡΡΠΊΠ΅, Π½Π°Π±ΡΡ
Π°Π½ΠΈΡ. ΠΡΠΎΡΠ΅ΡΡ ΡΠ°ΡΠΏΠ°Π΄Π° Π½Π° ΠΊΡΠΎΡΠΊΠΈ ΠΈΠ·-Π·Π° ΠΏΠΎΡΡΠΎΡΠ½Π½ΠΎΠΉ ΠΌΠ΅Π½ΡΡΡΠ΅ΠΉΡΡ ΡΠ΅ΠΌΠΏΠ΅ΡΠ°ΡΡΡΡ β ΡΡΠΈΠ»ΠΈΡΡΡ.
ΠΠΎΠ΄ΡΠΎΠ±Π½Π΅Π΅ ΠΎ ΠΏΠ»ΡΡΠ°Ρ ΠΈ ΠΌΠΈΠ½ΡΡΠ°Ρ ΠΏΠΎΠ΄Π»ΠΎΠΆΠΊΠΈ ΠΈΠ· Ρ Π²ΠΎΠΈ ΠΈ ΠΏΡΠΎΠ±ΠΊΠΈ β ΠΎΠΏΠΈΡΠ°Π½ΠΎ Π·Π΄Π΅ΡΡ.
ΠΠΎΠ»ΠΈΠΌΠ΅ΡΠ½ΡΠ΅ ΡΡΠ»ΠΎΠ½Ρ ΠΈ ΠΌΠ°ΡΡ
Π’ΡΠ°Π΄ΠΈΡΠΈΠΎΠ½Π½ΡΠ΅ ΠΏΠΎΠ΄Π»ΠΎΠΆΠΊΠΈ ΠΏΠΎΠ΄ Π»Π°ΠΌΠΈΠ½Π°Ρ β ΡΡΠΎ ΠΏΠΎΠ»ΠΈΡΡΠΈΡΠΎΠ»Ρ. ΠΡΠ΅Π΄ΡΡΠ°Π²Π»Π΅Π½Ρ ΠΎΠ½ΠΈ Π² Π²ΠΈΠ΄Π΅ ΡΠ»ΠΎΠ΅Π² ΠΏΠΎΠ»ΠΈΡΡΠΈΠ»Π΅Π½Π° Ρ ΠΌΠΎΠ»Π΅ΠΊΡΠ»Π°ΠΌΠΈ Π²ΠΎΠ·Π΄ΡΡ Π°, Π·Π°ΠΊΠ»ΡΡΠ΅Π½Π½ΡΠΌΠΈ Π² Π°Π½Π°Π»ΠΎΠ³ΠΈΡΠ½ΡΡ ΠΎΠ±ΠΎΠ»ΠΎΡΠΊΡ. ΠΡΠΎΠ΄ΡΠΊΡ Π»ΠΈΡΠ΅Π½ ΡΠΊΠΎΠ»ΠΎΠ³ΠΈΡΠ½ΠΎΠΉ ΡΠΎΡΡΠ°Π²Π»ΡΡΡΠ΅ΠΉ, ΠΎΠ΄Π½Π°ΠΊΠΎ, ΠΏΡΠΈ Π²Π½ΠΈΠΌΠ°ΡΠ΅Π»ΡΠ½ΠΎΠΌ ΡΡΠ΅Π½ΠΈΠΈ ΡΠ΅ΡΡΠΈΡΠΈΠΊΠ°ΡΠ°, Π΄ΠΎΡΡΠΎΠΈΠ½, Π½Π°Ρ ΠΎΠ΄ΠΈΡΡΡΡ Π΄Π°ΠΆΠ΅ Π² Π΄Π΅ΡΡΠΊΠΈΡ ΠΊΠΎΠΌΠ½Π°ΡΠ°Ρ β ΠΏΠΎΠ»ΠΈΠΌΠ΅ΡΠ½ΡΠ΅ ΠΏΠΎΠ΄Π»ΠΎΠΆΠΊΠΈ Π±Π΅Π·ΠΎΠΏΠ°ΡΠ½Ρ ΠΈ Π½Π΅ Π²ΡΠΏΡΡΠΊΠ°ΡΡ Π² Π°ΡΠΌΠΎΡΡΠ΅ΡΡ Π²ΡΠ΅Π΄Π½ΡΡ Π²Π΅ΡΠ΅ΡΡΠ². ΠΡΠ΅ΠΈΠΌΡΡΠ΅ΡΡΠ²Π°:
1. ΠΠ½Π΅ΡΡΠ½ΠΎΡΡΡ ΠΊ Π²Π»Π°Π³Π΅. Π‘ΠΏΠ΅ΡΠΈΠ°Π»ΡΠ½ΡΠ΅ Π²ΠΈΠ΄Ρ ΠΈΠΌΠ΅ΡΡ ΠΏΠ΅ΡΡΠΎΡΠ°ΡΠΈΡ Π΄Π»Ρ ΠΎΡΠ²ΠΎΠ΄Π° ΡΠΊΠΎΠΏΠΈΠ²ΡΠ΅Π³ΠΎΡΡ ΠΊΠΎΠ½Π΄Π΅Π½ΡΠ°ΡΠ°.
2. ΠΠ²ΡΠΊΠΎ- ΠΈ ΡΠ΅ΠΏΠ»ΠΎΠΈΠ·ΠΎΠ»ΡΡΠΈΡ Π΄ΠΎΡΡΠΈΠ³Π°Π΅ΡΡΡ ΡΠΎΠ»ΡΠΈΠ½ΠΎΠΉ ΠΈ Π²ΠΎΠ·Π΄ΡΡ
ΠΎΠΌ, Π·Π°ΠΊΠ»ΡΡΠ΅Π½Π½ΡΠΌ Π² ΠΊΠ°ΠΏΡΡΠ»Ρ ΠΏΠΎΠ»ΠΈΡΡΠΈΠ»Π΅Π½Π°. Π‘ Π½Π°ΡΡΠΈΠ»ΠΎΠΌ ΠΏΠΎΠ»ΠΈΠΌΠ΅ΡΠ½ΠΎΠΉ ΠΏΠΎΠ΄Π»ΠΎΠΆΠΊΠΈ Π½Π΅ ΡΡΠ΅Π±ΡΠ΅ΡΡΡ ΡΠΊΠ»Π°Π΄ΠΊΠ° ΡΠ΅ΠΏΠ»ΠΎΠ³ΠΎ ΠΏΠΎΠ»Π°. Π§Π°ΡΡΠΎ ΡΡΠ»ΠΎΠ½Ρ ΠΈΠ»ΠΈ ΠΌΠ°ΡΡ ΡΠ½Π°Π±ΠΆΠ΅Π½Ρ ΡΠΎΠ»ΡΠ³ΠΈΡΠΎΠ²Π°Π½Π½ΠΎΠΉ ΡΡΠΎΡΠΎΠ½ΠΎΠΉ, ΠΊΠΎΡΠΎΡΠ°Ρ ΠΎΡΡΠ°ΠΆΠ°Π΅Ρ ΡΠ΅ΠΏΠ»ΠΎ Π²Π½ΡΡΡΡ ΠΊΠΎΠΌΠ½Π°ΡΡ.
3. ΠΡΡΠ°Π²Π½ΠΈΠ²Π°Π½ΠΈΠ΅ ΡΠ΅ΡΠ½ΠΎΠ²ΠΎΠ³ΠΎ ΠΏΠΎΠ»Π°. Π ΡΡΠΎΠΌ ΡΠ°ΠΊΠΆΠ΅ Β«Π²ΠΈΠ½ΠΎΠ²Π½Π°Β» ΡΠΎΠ»ΡΠΈΠ½Π° ΠΌΠ°ΡΠΎΠ² ΠΏΠΎΠ»ΠΈΡΡΠΈΡΠΎΠ»ΡΠ½ΡΡ
ΠΏΠΎΠ΄Π»ΠΎΠΆΠ΅ΠΊ. ΠΠ΅ΡΠ΅ΠΏΠ°Π΄ Π΄ΠΎ 3 ΠΌΠΌ ΡΡΠ°Π½Π΅Ρ Π½Π΅Π·Π°ΠΌΠ΅ΡΠ΅Π½.
ΠΠΎΠΏΡΠ»ΡΡΠ½ΠΎΡΡΡ ΠΏΠΎΠ»ΠΈΠΌΠ΅ΡΠ½ΡΡ ΠΏΠΎΠ΄Π»ΠΎΠΆΠ΅ΠΊ ΠΎΠ±ΡΡΠ»ΠΎΠ²Π»Π΅Π½Π° ΠΈ ΡΠ΅Π½ΠΎΠΉ β ΡΡΠΎΠΈΠΌΠΎΡΡΡ Π½Π° Π½ΠΈΡ Π½ΠΈΠΆΠ΅, ΡΠ΅ΠΌ Π½Π° Π½Π°ΡΡΡΠ°Π»ΡΠ½ΡΡ ΠΏΡΠΎΠ±ΠΊΡ ΠΈ Ρ Π²ΠΎΡ, Π° ΠΏΠΎ ΡΠ²ΠΎΠΈΠΌ ΠΊΠ°ΡΠ΅ΡΡΠ²Π°ΠΌ ΠΎΠ½ΠΈ ΠΈΡ ΠΏΡΠ΅Π²ΠΎΡΡ ΠΎΠ΄ΡΡ.
ΠΠ½ΡΡΡΡΠΊΡΠΈΡ ΠΏΠΎ ΠΌΠΎΠ½ΡΠ°ΠΆΡ ΠΏΠΎΠ΄Π»ΠΎΠΆΠΊΠΈ ΠΏΠΎΠ΄ Π»Π°ΠΌΠΈΠ½Π°Ρ
ΠΡΠΎΡΠ΅ΡΡ Π²ΠΊΠ»ΡΡΠ°Π΅Ρ Π² ΡΠ΅Π±Ρ Π½Π΅ΡΠΊΠΎΠ»ΡΠΊΠΎ ΡΡΠ°ΠΏΠΎΠ²: ΠΏΠΎΠ΄Π³ΠΎΡΠΎΠ²ΠΊΠ° ΠΎΡΠ½ΠΎΠ²Π°Π½ΠΈΡ, ΡΠΈΠΊΡΠ°ΡΠΈΡ ΠΏΠΎΠ΄Π»ΠΎΠΆΠΊΠΈ ΠΈ ΡΠΎΠ±ΡΡΠ²Π΅Π½Π½ΠΎ, ΡΠΊΠ»Π°Π΄ΠΊΡ Π»Π°ΠΌΠΈΠ½Π°ΡΠ°. ΠΠ΅Π· ΡΠΎΡΠ½ΠΎΠ³ΠΎ ΡΠΎΠ±Π»ΡΠ΄Π΅Π½ΠΈΡ ΠΊΠ°ΠΆΠ΄ΠΎΠ³ΠΎ, ΠΆΠ΄Π°ΡΡ ΠΎΡ ΡΠΊΡΠΏΠ»ΡΠ°ΡΠ°ΡΠΈΠΈ Π΄ΠΎΠ»Π³ΠΎΠ²Π΅ΡΠ½ΠΎΡΡΠΈ β Π½Π΅Π»ΡΠ·Ρ. ΠΡΠ°ΠΊ:
ΠΠ½ΡΡΡΡΠΌΠ΅Π½ΡΡ ΠΈ ΠΌΠ°ΡΠ΅ΡΠΈΠ°Π»Ρ
ΠΠ΅Π»ΡΠ·Ρ Π±ΡΡΡ Ρ ΠΎΡΠΎΡΠΈΠΌ ΠΌΠ°ΡΡΠ΅ΡΠΎΠΌ Π±Π΅Π· ΡΠΎΠΎΡΠ²Π΅ΡΡΡΠ²ΡΡΡΠ΅Π³ΠΎ ΠΈΠ½ΡΡΡΡΠΌΠ΅Π½ΡΠ° ΠΈ ΡΠΎΠΏΡΡΡΡΠ²ΡΡΡΠΈΡ ΠΌΠ°ΡΠ΅ΡΠΈΠ°Π»ΠΎΠ². ΠΠΎ ΡΠΎΠ³ΠΎ ΠΊΠ°ΠΊ ΠΏΡΠ°Π²ΠΈΠ»ΡΠ½ΠΎ ΡΠ»ΠΎΠΆΠΈΡΡ ΠΏΠΎΠ΄Π»ΠΎΠΆΠΊΡ ΠΏΠΎΠ΄ Π»Π°ΠΌΠΈΠ½Π°Ρ, Π²Π°ΠΆΠ½ΠΎ ΠΎΠ±Π·Π°Π²Π΅ΡΡΠΈΡΡ ΡΠ»Π΅Π΄ΡΡΡΠΈΠΌ:
1.
ΠΠ°Π½ΡΠ΅Π»ΡΡΡΠΊΠΈΠΉ Π½ΠΎΠΆ ΠΈΠ»ΠΈ Π½ΠΎΠΆΠ½ΠΈΡΡ. ΠΠ΅ΡΠ²ΡΠΉ Π²Π°ΡΠΈΠ°Π½Ρ ΠΏΠΎΠ΄ΠΎΠΉΠ΄Π΅Ρ Π΄Π»Ρ Π½Π°ΡΡΡΠ°Π»ΡΠ½ΡΡ
Π²ΠΈΠ΄ΠΎΠ² ΠΏΠΎΠ΄Π»ΠΎΠΆΠΊΠΈ, Π²ΡΠΎΡΠΎΠΉ β Π΄Π»Ρ ΠΌΡΠ³ΠΊΠΈΡ
ΠΏΠΎΠ»ΠΈΠΌΠ΅ΡΠΎΠ².
2. Π‘ΡΡΠΎΠΈΡΠ΅Π»ΡΠ½ΡΠΉ ΡΠΊΠΎΡΡ. ΠΡΠ»ΠΈ Π² ΡΡΠ»ΠΎΠ½Π΅ ΠΈΠ»ΠΈ Π½Π° ΠΌΠ°ΡΠ°Ρ
ΠΈΠΌΠ΅Π΅ΡΡΡ ΡΠΎΠ»ΡΠ³ΠΈΡΠΎΠ²Π°Π½Π½ΡΠΉ ΡΠ»ΠΎΠΉ, ΡΠΎ ΠΏΡΠΈΠΎΠ±ΡΠ΅ΡΠ°ΡΡ ΠΌΠ΅ΡΠ°Π»Π»ΠΈΠ·ΠΈΡΠΎΠ²Π°Π½Π½ΡΡ Π»Π΅Π½ΡΡ. Π ΠΏΡΠΎΡΠΈΠ²Π½ΠΎΠΌ ΡΠ»ΡΡΠ°Π΅ ΠΎΠ±Ρ
ΠΎΠ΄ΡΡΡΡ ΠΎΠ±ΡΡΠ½ΠΎΠΉ.
3. ΠΠ»Π΅ΠΉ. ΠΠ½ ΠΏΠΎΡΡΠ΅Π±ΡΠ΅ΡΡΡ Π΄Π»Ρ Π½Π°ΡΡΡΠ°Π»ΡΠ½ΡΡ
ΠΏΠΎΠ΄Π»ΠΎΠΆΠ΅ΠΊ.
4. ΠΠΎΠΌΠΏΠ»Π΅ΠΊΡ Π΄Π»Ρ Π²ΡΡΠ°Π²Π½ΠΈΠ²Π°Π½ΠΈΡ ΠΏΠΎΠ»Π° β ΡΠΌΠ΅ΡΡ Π΄Π»Ρ ΡΡΡΠΆΠΊΠΈ, ΠΌΠ°ΡΠΊΠΈ, Π°ΡΠΌΠΈΡΡΡΡΠ°Ρ ΡΠ΅ΡΠΊΠ°, ΠΌΠΈΠΊΡΠ΅Ρ, ΠΏΡΠ°Π²ΠΈΠ»ΠΎ ΠΈ Π΅ΠΌΠΊΠΎΡΡΠΈ Π΄Π»Ρ Π·Π°ΠΌΠ΅ΡΠΈΠ²Π°Π½ΠΈΡ. ΠΠ΅ΠΎΠ±Ρ
ΠΎΠ΄ΠΈΠΌΠ° Π³ΡΡΠ½ΡΠΎΠ²ΠΊΠ° Π΄Π»Ρ ΠΏΡΠΎΠΏΠΈΡΠΊΠΈ Π±Π΅ΡΠΎΠ½Π½ΠΎΠΉ ΠΏΠΎΠ²Π΅ΡΡ
Π½ΠΎΡΡΠΈ ΠΈ Π΄Π΅ΠΌΠΏΡΠ΅ΡΠ½Π°Ρ Π»Π΅Π½ΡΠ° Π΄Π»Ρ Π°ΠΌΠΎΡΡΠΈΠ·Π°ΡΠΈΠΈ ΡΡΡΠΆΠΊΠΈ ΠΈ ΡΡΠ΅Π½.
5. ΠΡΠΈΠ±ΠΎΡΡ ΠΊΠΎΠ½ΡΡΠΎΠ»Ρ ΠΈ ΠΈΠ·ΠΌΠ΅ΡΠ΅Π½ΠΈΡ: ΡΡΠΎΠ²Π΅Π½Ρ, ΡΡΠ»Π΅ΡΠΊΠ°.
Π‘ ΡΠ°ΠΊΠΈΠΌ Π½Π°Π±ΠΎΡΠΎΠΌ ΡΠ°Π±ΠΎΡΠ° ΠΏΠΎΠΉΠ΄Π΅Ρ Π±ΡΡΡΡΠΎ.
ΠΠΎΠ΄Π³ΠΎΡΠΎΠ²ΠΊΠ° ΠΎΡΠ½ΠΎΠ²Π°Π½ΠΈΡ
ΠΠΎ ΡΠΎΠ³ΠΎ ΠΊΠ°ΠΊ ΠΊΠ»Π°ΡΡΡ ΠΏΠΎΠ΄Π»ΠΎΠΆΠΊΡ ΠΏΠΎΠ΄ Π»Π°ΠΌΠΈΠ½Π°Ρ, Π²Π°ΠΆΠ½ΠΎ ΠΎΡΠ΅Π½ΠΈΡΡ ΠΏΠΎΠ²Π΅ΡΡ
Π½ΠΎΡΡΡ ΡΠ΅ΡΠ½ΠΎΠ²ΠΎΠ³ΠΎ ΠΏΠΎΠ»Π°. ΠΠ΅ΡΠΎΠ½Π½ΡΠ΅ ΡΡΡΠΆΠΊΠΈ ΡΠΎ Π²ΡΠ΅ΠΌΠ΅Π½Π΅ΠΌ ΠΊΡΠΎΡΠ°ΡΡΡ ΠΈ Π΅ΡΠ»ΠΈ ΠΏΠΎΠ²Π΅ΡΡ
Π½ΠΎΡΡΡ Π½Π΅ Π²ΡΡΠΎΠ²Π½ΡΡΡ, ΡΠΎ Π²ΠΏΠΎΡΠ»Π΅Π΄ΡΡΠ²ΠΈΠΈ Π»Π°ΠΌΠΈΠ½Π°Ρ Π±ΡΠ΄Π΅Ρ ΠΏΠΎΠ»ΡΡΠ°ΡΡ Π½Π°Π³ΡΡΠ·ΠΊΡ Π² ΠΌΠ΅ΡΡΠ°Ρ
ΠΏΡΡΡΠΎΡ ΠΈ ΡΠΈΡΠΊΡΠ΅Ρ ΡΠ»ΠΎΠΌΠ°ΡΡΡΡ. ΠΡΠ°ΠΏΡ, ΡΠ»Π΅Π΄ΡΡΡΠΈΠ΅:
β’ ΠΡΠΈΡΠ΅Π½Π½ΡΡ ΠΏΠΎΠ²Π΅ΡΡ
Π½ΠΎΡΡΡ ΠΏΠΎΠ»Π° ΡΠ²Π»Π°ΠΆΠ½ΡΡΡ ΠΈ ΠΏΡΠΎΡ
ΠΎΠ΄ΡΡ ΠΏΠ»ΠΎΡΠ°Π΄Ρ ΠΏΡΠ»Π΅ΡΠΎΡΠΎΠΌ.
Π’Π°ΠΊ, ΠΌΠ΅Π»ΠΊΠ°Ρ ΠΏΡΠ»Ρ ΠΈ ΡΠ°ΡΡΠΈΡΡ Π±Π΅ΡΠΎΠ½Π° Π½Π΅ ΡΠΎΠ·Π΄Π°Π΄ΡΡ ΠΏΠΎΠ΄ ΠΏΠΎΠ΄Π»ΠΎΠΆΠΊΠΎΠΉ Π»ΠΈΡΠ½ΠΈΡ
ΠΏΠ΅ΡΠ΅ΠΏΠ°Π΄ΠΎΠ². ΠΠΎΡΠ»Π΅ Π²ΡΡΡΡ
Π°Π½ΠΈΡ ΠΏΠ»ΠΈΡΡ, Π΅Π΅ Π³ΡΡΠ½ΡΡΡΡ Π² Π½Π΅ΡΠΊΠΎΠ»ΡΠΊΠΎ ΡΠ»ΠΎΠ΅Π² Π΄Π»Ρ Π»ΡΡΡΠ΅ΠΉ Π°Π΄Π³Π΅Π·ΠΈΠΈ Ρ Π½ΠΎΠ²ΠΎΠΉ ΡΡΡΠΆΠΊΠΎΠΉ.
β’ ΠΡΡΠ°Π²Π½ΠΈΠ²Π°ΡΡΡΡ ΡΠΌΠ΅ΡΡ ΡΠ°Π·Π²ΠΎΠ΄ΡΡ Π΄ΠΎ Π½ΡΠΆΠ½ΠΎΠΉ ΠΊΠΎΠ½ΡΠΈΡΡΠ΅Π½ΡΠΈΠΈ. ΠΠ°ΠΆΠ½ΠΎ ΡΠΊΠ°Π·Π°ΡΡ, ΡΡΠΎ Π΄Π»Ρ Π±Π΅ΡΠΎΠ½Π½ΠΎΠΉ ΠΏΠ»ΠΈΡΡ Ρ ΠΌΠ΅Π½ΡΡΠΈΠΌΠΈ Π΄Π΅ΡΠ΅ΠΊΡΠ°ΠΌΠΈ β Π΄ΠΎ 10% ΠΎΡ Π²ΡΠ΅ΠΉ ΠΏΠ»ΠΎΡΠ°Π΄ΠΈ ΠΏΠΎΠ»Π°, ΠΏΠΎΠ΄ΠΎΠΉΠ΄Π΅Ρ ΡΠΈΠ½ΠΈΡΠ½Π°Ρ ΡΡΡΠΆΠΊΠ°. ΠΡΠ»ΠΈ Π²ΡΠ±ΠΎΠΈΠ½ ΠΈ ΡΡΠ΅ΡΠΈΠ½ Π·Π½Π°ΡΠΈΡΠ΅Π»ΡΠ½ΠΎΠ΅ ΠΊΠΎΠ»ΠΈΡΠ΅ΡΡΠ²ΠΎ, ΡΠΎ ΡΠ½Π°ΡΠ°Π»Π° ΠΊΠ»Π°Π΄ΡΡ ΡΠ»ΠΎΠΉ ΡΠ΅ΡΠ½ΠΎΠ²ΠΎΠΉ ΡΡΡΠΆΠΊΠΈ Ρ Π°ΡΠΌΠΈΡΡΡΡΠ΅ΠΉ ΡΠ΅ΡΠΊΠΎΠΉ.
β’ ΠΠΎΠΊΠ° ΡΠΌΠ΅ΡΡ ΡΠΎΠ·ΡΠ΅Π²Π°Π΅Ρ β Π΄Π»Ρ ΡΡΠΎΠ³ΠΎ ΠΎΡΠ²ΠΎΠ΄ΠΈΡΡΡ Π΄ΠΎ ΠΏΠΎΠ»ΡΡΠ°ΡΠ° β Π³ΠΎΡΠΎΠ²ΡΡ ΠΏΠΎΠ». ΠΡΠΈ ΠΏΠΎΠΌΠΎΡΠΈ Π»Π°Π·Π΅ΡΠ½ΠΎΠ³ΠΎ ΠΈΠ»ΠΈ Π²ΠΎΠ΄ΡΠ½ΠΎΠ³ΠΎ Π½ΠΈΠ²Π΅Π»ΠΈΡΠ° ΠΎΡΠ±ΠΈΠ²Π°ΡΡ Π½ΡΠ»Π΅Π²ΠΎΠΉ ΡΡΠΎΠ²Π΅Π½Ρ β Π½Π°Ρ
ΠΎΠ΄ΡΡ ΡΠ°ΠΌΡΡ Π²ΡΡΠΎΠΊΡΡ ΡΠΎΡΠΊΡ ΠΏΠΎΠ»Π° ΠΈ ΠΎΡΠΌΠ΅ΡΠ°ΡΡ Π»ΠΈΠ½ΠΈΡΠΌΠΈ ΠΏΠΎ ΠΏΠ΅ΡΠΈΠΌΠ΅ΡΡΡ. Π’ΠΎΠ³Π΄Π° ΠΆΠ΅ ΡΠΊΡΠ΅ΠΏΠ»ΡΡΡ Π΄Π΅ΠΌΠΏΡΠ΅ΡΠ½ΡΡ Π»Π΅Π½ΡΡ, ΡΡΠΎΠ±Ρ Π΅Π΅ ΠΊΡΠ°Ρ Π±ΡΠ»ΠΈ Π²ΠΈΠ΄Π½Ρ ΠΏΠΎΡΠ»Π΅ Π·Π°Π»ΠΈΠ²ΠΊΠΈ Π½Π° 2 ΡΠΌ.
β’ ΠΠ° Π³ΠΎΡΠΊΠΈ ΡΠ°ΡΡΠ²ΠΎΡΠ° Π²Π΄ΠΎΠ»Ρ ΠΊΠΎΠΌΠ½Π°ΡΡ ΡΠΊΠ»Π°Π΄ΡΠ²Π°ΡΡ ΠΏΡΠΎΡΠΈΠ»ΡΠ½ΡΠ΅ ΠΌΠ°ΡΠΊΠΈ ΠΈ ΡΠ΅ΡΠΊΡ. ΠΠ°ΠΆΠ½ΠΎ ΡΡΠΎΠ±Ρ ΠΎΠ½Π° Π½Π°Ρ
ΠΎΠ΄ΠΈΠ»Π°ΡΡ Π½Π° Π½Π΅ΠΊΠΎΡΠΎΡΠΎΠΌ ΡΠ°ΡΡΡΠΎΡΠ½ΠΈΠΈ ΠΎΡ ΡΡΡΠΆΠΊΠΈ β ΡΠ°ΠΊ, ΡΠ°ΡΡΠ²ΠΎΡ ΠΎΡ
Π²Π°ΡΠΈΡ Π΅Π΅ ΠΈ ΡΠ½ΠΈΠ·Ρ ΠΈ ΡΠ΅ΡΠ½ΠΎΠ²ΠΎΠΉ ΠΏΠΎΠ» ΠΏΠΎΠ»ΡΡΠΈΡ Π±ΠΎΠ»ΡΡΠ΅ ΠΏΡΠΎΡΠ½ΠΎΡΡΠΈ.
β’ ΠΡΠΈΡΡΡΠΏΠ°ΡΡ ΠΊ Π·Π°Π»ΠΈΠ²ΠΊΠ΅ ΡΠΌΠ΅ΡΠΈ Π½Π΅Π±ΠΎΠ»ΡΡΠΈΠΌΠΈ ΠΏΠΎΡΡΠΈΡΠΌΠΈ.
ΠΠ΅Π»Π°ΡΠ΅Π»ΡΠ½ΠΎ Π·Π°ΠΊΠΎΠ½ΡΠΈΡΡ ΠΌΠΎΠ½ΡΠ°ΠΆ ΠΎΠ΄Π½ΠΎΠΉ ΠΊΠΎΠΌΠ½Π°ΡΡ Π·Π° Π΄Π΅Π½Ρ, ΡΡΠΎΠ±Ρ Π½Π΅ ΠΏΠΎΠ»ΡΡΠΈΡΡ ΡΠ°ΡΡΠ»ΠΎΠ΅Π½ΠΈΡ ΠΌΠ΅ΠΆΠ΄Ρ ΡΠ»ΠΎΠΆΠ΅Π½Π½ΠΎΠΉ ΡΡΡΠΆΠΊΠΎΠΉ ΠΈ ΡΠ²Π΅ΠΆΠΈΠΌ ΡΡΠ°ΡΡΠΊΠΎΠΌ. ΠΡΠ°Π²ΠΈΠ»ΠΎΠΌ ΡΠ°Π·Π³Π»Π°ΠΆΠΈΠ²Π°ΡΡ ΠΌΠ°ΡΡΡ ΠΈ ΠΎΡΡΠ°Π²Π»ΡΡΡ Π΄ΠΎ ΠΏΠΎΠ»Π½ΠΎΠ³ΠΎ ΡΡ
Π²Π°ΡΡΠ²Π°Π½ΠΈΡ. Π‘ΡΠΎΠΊ, Π² Π·Π°Π²ΠΈΡΠΈΠΌΠΎΡΡΠΈ ΠΎΡ ΡΠΎΠ»ΡΠΈΠ½Ρ ΡΠΎΡΡΠ°Π²ΠΈΡ ΠΎΡ Π΄Π²ΡΡ
Π½Π΅Π΄Π΅Π»Ρ Π΄ΠΎ 1 ΠΌΠ΅ΡΡΡΠ°.
β’ ΠΠ»Ρ ΡΠΊΠ»Π°Π΄ΠΊΠΈ Π»Π°ΠΌΠΈΠ½Π°ΡΠ° Π²Π°ΠΆΠ½Π° Π²Π»Π°ΠΆΠ½ΠΎΡΡΡ Π³ΠΎΡΠΎΠ²ΠΎΠΉ ΠΏΠΎΠ²Π΅ΡΡ
Π½ΠΎΡΡΠΈ. ΠΡΠΎΠ²Π΅ΡΡΡΡ ΡΡΠΎ ΠΏΡΠΈ ΠΏΠΎΠΌΠΎΡΠΈ ΠΏΠΎΠ»ΠΈΡΡΠΈΠ»Π΅Π½Π° β ΠΊΡΡΠΎΠΊ Π½Π°ΠΊΠ»Π°Π΄ΡΠ²Π°ΡΡ Π½Π° ΠΏΠΎΠ²Π΅ΡΡ
Π½ΠΎΡΡΡ. ΠΡΠ»ΠΈ Π½Π° Π½Π΅ΠΌ ΠΏΠΎΡΠ²Π»ΡΡΡΡΡ ΠΊΠ°Π»ΠΈ ΠΊΠΎΠ½Π΄Π΅Π½ΡΠ°ΡΠ°, ΡΠΎ ΠΏΡΠΈΡΡΡΠΏΠ°ΡΡ ΠΊ ΡΠΊΠ»Π°Π΄ΠΊΠ΅ ΠΏΠΎΠ΄Π»ΠΎΠΆΠΊΠΈ β Π½Π΅Π»ΡΠ·Ρ.
ΠΡΠ»ΠΈ ΡΠ΅ΡΡ ΠΈΠ΄Π΅Ρ ΠΎΠ± ΡΠΊΠ»Π°Π΄ΠΊΠ΅ Π½Π°ΡΡΡΠ°Π»ΡΠ½ΡΡ ΠΌΠ°ΡΠ΅ΡΠΈΠ°Π»ΠΎΠ², ΡΠΎ ΠΏΠ΅ΡΠ΅Π΄ ΡΠ΅ΠΌ ΠΊΠ°ΠΊ ΡΡΠ΅Π»ΠΈΡΡ ΠΏΠΎΠ΄Π»ΠΎΠΆΠΊΡ ΠΏΠΎΠ΄ Π»Π°ΠΌΠΈΠ½Π°Ρ ΡΡΠ΅Π±ΡΠ΅ΡΡΡ Π³ΠΈΠ΄ΡΠΎΠΈΠ·ΠΎΠ»ΠΈΡΠΎΠ²Π°ΡΡ Π΅Π΅ ΠΎΡ Π±Π΅ΡΠΎΠ½Π½ΠΎΠΉ ΡΡΡΠΆΠΊΠΈ. ΠΠ»Ρ ΡΡΠΎΠ³ΠΎ Π΄ΠΎ Π½Π°ΡΠ°Π»Π° ΡΠ°Π±ΠΎΡΡ, Π½Π° ΠΏΠΎΠ²Π΅ΡΡ Π½ΠΎΡΡΡ ΡΠΊΠ»Π°Π΄ΡΠ²Π°ΡΡ ΠΏΠΎΠ»ΠΈΡΡΠΈΠ»Π΅Π½ΠΎΠ²ΡΡ ΠΏΠ»Π΅Π½ΠΊΡ.
ΠΠ°ΡΡΠΈΠ» ΠΏΠΎΠ΄Π»ΠΎΠΆΠΊΠΈ ΠΈΠ· ΠΏΡΠΎΠ±ΠΊΠΈ ΠΈ Ρ Π²ΠΎΠΈ
Π‘Π½Π°ΡΠ°Π»Π° Π½Π° Π³ΠΎΡΠΎΠ²ΡΠΉ ΡΠ΅ΡΠ½ΠΎΠ²ΠΎΠΉ ΠΏΠΎΠ» ΡΠ°ΡΠΊΠ»Π°Π΄ΡΠ²Π°ΡΡ ΠΌΠ°ΡΠ΅ΡΠΈΠ°Π». ΠΠΎ ΡΠΎΠ³ΠΎ ΠΊΠ°ΠΊ ΡΡΠ΅Π»ΠΈΡΡ ΠΏΡΠΎΠ±ΠΊΠΎΠ²ΡΡ ΠΏΠΎΠ΄Π»ΠΎΠΆΠΊΡ ΠΏΠΎΠ΄ Π»Π°ΠΌΠΈΠ½Π°Ρ β ΡΡΠ»ΠΎΠ½Ρ ΡΠ°Π·Π²ΠΎΡΠ°ΡΠΈΠ²Π°ΡΡ, Ρ Π²ΠΎΠΉΠ½ΡΠ΅ ΠΏΠ»ΠΈΡΡ ΠΊΠ»Π°Π΄ΡΡ ΠΏΠΎ ΠΎΠ΄Π½ΠΎΠΉ. ΠΡΠΎ ΠΏΠΎΠΌΠΎΠΆΠ΅Ρ ΠΏΠΎΠ΄Π»ΠΎΠΆΠΊΠ΅ Π°Π΄Π°ΠΏΡΠΈΡΠΎΠ²Π°ΡΡΡΡ ΠΊ ΠΊΠ»ΠΈΠΌΠ°ΡΡ ΠΊΠΎΠΌΠ½Π°ΡΡ. ΠΠ°Π»Π΅Π΅:
1. ΠΡΠ½ΠΎΠ²Π°Π½ΠΈΠ΅ ΠΏΡΠΎΠΌΠ°Π·ΡΠ²Π°ΡΡ ΠΊΠ»Π΅Π΅ΠΌ ΠΈ ΠΊΠ»Π°Π΄ΡΡ Π½Π° Π½Π΅Π³ΠΎ ΡΠ°Π·ΠΌΠ΅ΡΠ΅Π½Π½ΡΠΉ ΡΡΠ°ΡΡΠΎΠΊ ΡΡΠ»ΠΎΠ½Π°.
ΠΡΠΎΠ±ΠΊΠΎΠ²ΡΡ ΠΏΠΎΠ΄Π»ΠΎΠΆΠΊΡ Π½Π΅ ΡΠΊΡΠ΅ΠΏΠ»ΡΡΡ Ρ Π½Π°Ρ
Π»Π΅ΡΡΠΎΠΌ Π½Π° ΡΡΠ΅Π½Ρ, ΠΊΠ»Π°Π΄ΡΡ ΡΠΎΡΠ½ΠΎ Π²ΡΡΡΠΊ. ΠΠ°Π»ΠΈΠΊΠΎΠΌ ΠΏΡΠΎΠΊΠ°ΡΡΠ²Π°ΡΡ Π·Π°ΡΠΈΠΊΡΠΈΡΠΎΠ²Π°Π½Π½ΡΠΉ ΡΡΠ°ΡΡΠΎΠΊ.
2. Π‘Π»Π΅Π΄ΡΡΡΠΈΠΉ ΠΊΡΡΠΎΠΊ ΠΏΠΎΠ΄Π»ΠΎΠΆΠΊΠΈ ΠΊΠ»Π°Π΄ΡΡ Π°Π½Π°Π»ΠΎΠ³ΠΈΡΠ½ΠΎ, ΡΡΠ°ΡΠ°ΡΡΡ, ΡΡΠΎΠ±Ρ Π½Π΅ Π±ΡΠ»ΠΎ Π½Π°Ρ
Π»Π΅ΡΡΠ°.
3. Π§ΡΠΎΠ±Ρ ΡΠΎΡΠ½ΠΎ Π²ΡΠΌΠ΅ΡΡΡΡ ΠΊΡΡΠΎΠΊ, Π½Π΅ ΡΠΊΠ»Π°Π΄ΡΠ²Π°ΡΡΠΈΠΉΡΡ Π² ΡΠΈΡΠΈΠ½Ρ ΡΡΠ°Π½Π΄Π°ΡΡΠ°, ΠΏΠΎΡΡΡΠΏΠ°ΡΡ ΡΠ»Π΅Π΄ΡΡΡΠΈΠΌ ΠΎΠ±ΡΠ°Π·ΠΎΠΌ: ΠΎΠ΄Π½Ρ ΡΡΠΎΡΠΎΠ½Ρ ΡΠΊΠ»Π°Π΄ΡΠ²Π°ΡΡ Π²ΡΡΡΠΊ ΠΊ ΡΡΠ΅Π½Π΅, Π° Π΄ΡΡΠ³ΡΡ Π·Π°Π²ΠΎΠ΄ΡΡ ΠΈΠ»ΠΈ Π½Π°ΠΊΠ»Π°Π΄ΡΠ²Π°ΡΡ Π½Π° ΡΠΆΠ΅ ΠΏΠΎΠ»ΠΎΠΆΠ΅Π½Π½ΡΠΉ Π»ΠΈΡΡ. ΠΡΠΌΠ΅ΡΠ°ΡΡ ΡΠΎΡΠΊΠΈ ΠΈ ΠΎΡΡΠ΅Π·Π°ΡΡ Π½Π΅Π½ΡΠΆΠ½ΠΎΠ΅.
ΠΠ°ΠΊ ΡΠΊΠ»Π°Π΄ΡΠ²Π°ΡΡ Π»ΠΈΡΡΠΎΠ²ΡΡ ΠΏΠΎΠ΄Π»ΠΎΠΆΠΊΡ ΠΏΠΎΠ΄ Π»Π°ΠΌΠΈΠ½Π°Ρ? Π₯Π²ΠΎΠΉΠ½ΡΠ΅ ΠΏΠ»ΠΈΡΡ ΠΊΠ»Π°Π΄ΡΡ Π°Π½Π°Π»ΠΎΠ³ΠΈΡΠ½ΠΎ, Π½ΠΎ ΠΏΠΎΠ΄ ΡΠ³Π»ΠΎΠΌ Π² 45β°. Π‘Π½Π°ΡΠ°Π»Π° Π½Π°ΡΠ΅Π·Π°ΡΡ ΠΈ ΡΠΈΠΊΡΠΈΡΡΡΡ ΠΌΠ°ΡΠ΅ΡΠΈΠ°Π» ΠΏΠΎ ΠΎΠ΄Π½ΠΎΠΉ ΡΡΠ΅Π½Π΅, Π·Π°ΡΠ΅ΠΌ ΠΊΠ»Π°Π΄ΡΡ ΡΠ΅Π»ΡΠ΅ ΠΏΠ»ΠΈΡΡ.
Π£ΠΊΠ»Π°Π΄ΠΊΠ° ΠΏΠΎΠ»ΠΈΠΌΠ΅ΡΠ½ΡΡ ΠΌΠ°ΡΠ΅ΡΠΈΠ°Π»ΠΎΠ²
ΠΠ»Ρ Π½ΠΈΡ Π½Π΅ ΡΡΠ΅Π±ΡΠ΅ΡΡΡ Π΄ΠΎΠΏΠΎΠ»Π½ΠΈΡΠ΅Π»ΡΠ½ΠΎΠΉ Π³ΠΈΠ΄ΡΠΎΠΈΠ·ΠΎΠ»ΡΡΠΈΠΈ ΠΈ ΠΊΠ»Π΅Ρ. ΠΠ½Π°Π»ΠΎΠ³ΠΈΡΠ½ΠΎ Π½Π°ΡΡΡΠ°Π»ΡΠ½ΠΎΠΌΡ ΠΌΠ°ΡΠ΅ΡΠΈΠ°Π»Ρ, ΡΡΠ»ΠΎΠ½Ρ ΡΠ°ΡΠΊΠ°ΡΡΠ²Π°ΡΡ ΠΈ ΠΎΡΡΠ°Π²Π»ΡΡΡ Π΄Π»Ρ Π°Π΄Π°ΠΏΡΠ°ΡΠΈΠΈ. ΠΠ°Π»Π΅Π΅:
1. ΠΡΡΡ Π²ΠΎΠΏΡΠΎΡ, ΠΊΠ°ΠΊΠΎΠΉ ΡΡΠΎΡΠΎΠ½ΠΎΠΉ ΠΊΠ»Π°ΡΡΡ ΠΏΠΎΠ΄Π»ΠΎΠΆΠΊΡ ΠΏΠΎΠ΄ Π»Π°ΠΌΠΈΠ½Π°Ρ? ΠΠΎΠ΄Π»ΠΎΠΆΠΊΠ° Ρ ΡΠΎΠ»ΡΠ³ΠΈΡΠΎΠ²Π°Π½Π½ΠΎΠΉ ΡΡΠΎΡΠΎΠ½ΠΎΠΉ ΡΠΊΠ»Π°Π΄ΡΠ²Π°Π΅ΡΡΡ Π±Π»Π΅ΡΡΡΡΠΈΠΌ ΡΠ»ΠΎΠ΅ΠΌ Π²Π²Π΅ΡΡ
. ΠΠΈΡΡΠΌΠ½ΡΠ΅ ΠΏΠΎΠ΄Π»ΠΎΠΆΠΊΠΈ β Π²Π²Π΅ΡΡ
ΡΠ»ΠΎΠ΅ΠΌ Ρ ΠΏΠ°ΡΠΎΠΈΠ·ΠΎΠ»ΡΡΠΈΠ΅ΠΉ ΠΈ ΠΊΡΠΎΡΠΊΠΎΠΉ.
ΠΠ»Ρ ΠΎΡΡΠ°Π»ΡΠ½ΡΡ
ΡΡΠΎΡΠΎΠ½Π° Π½Π΅ ΠΈΠΌΠ΅Π΅Ρ Π·Π½Π°ΡΠ΅Π½ΠΈΡ.
2. ΠΠΎ ΠΏΡΠΈΠΌΠ΅ΡΡ ΡΠΊΠ»Π°Π΄ΠΊΠΈ ΠΏΡΠΎΠ±ΠΊΠΎΠ²ΡΡ
ΡΡΠ»ΠΎΠ½ΠΎΠ², ΡΡΡΡΠ΅ Π½Π°ΡΠ΅Π·Π°Π΅ΡΡΡ ΠΈ ΡΠΊΠ»Π°Π΄ΡΠ²Π°Π΅ΡΡΡ Π²ΡΡΡΠΊ. Π¨Π²Ρ ΠΏΡΠΎΠΊΠ»Π΅ΠΈΠ²Π°ΡΡΡΡ ΡΡΡΠΎΠΈΡΠ΅Π»ΡΠ½ΡΠΌ ΡΠΊΠΎΡΡΠ΅ΠΌ Π΄Π»Ρ ΡΠΎΠ³ΠΎ, ΡΡΠΎΠ±Ρ ΠΈΠ·Π±Π΅ΠΆΠ°ΡΡ Π΄Π²ΠΈΠΆΠ΅Π½ΠΈΡ.
3. ΠΠΎΠ»ΠΈΠΌΠ΅ΡΠ½ΡΠ΅ ΠΏΠΎΠ΄Π»ΠΎΠΆΠΊΠΈ Π²ΠΎΠ·ΠΌΠΎΠΆΠ½ΠΎ Π·Π°Π²ΠΎΠ΄ΠΈΡΡ ΠΊΡΠ°ΡΠΌΠΈ Π½Π° ΡΡΠ΅Π½Ρ. Π’ΠΎΠ³Π΄Π° Π»Π°ΠΌΠΈΠ½Π°Ρ ΠΏΠΎΠ»ΡΡΠΈΡ Π΄ΠΎΠΏΠΎΠ»Π½ΠΈΡΠ΅Π»ΡΠ½ΡΡ ΠΊΠΎΠΌΠΏΠ΅Π½ΡΠ°ΡΠΈΡ Π»ΠΈΠ½Π΅ΠΉΠ½ΡΡ
ΡΠ°ΡΡΠΈΡΠ΅Π½ΠΈΠΉ.
ΠΡΡΠ°Π΅ΡΡΡ Π·Π°ΠΊΠΎΠ½ΡΠΈΡΡ ΡΠ°Π±ΠΎΡΡ ΡΠΊΠ»Π°Π΄ΠΊΠΎΠΉ Π»Π°ΠΌΠΈΠ½Π°ΡΠ°. ΠΠ°ΠΊ ΡΡΠΎ ΡΠ΄Π΅Π»Π°ΡΡ ΡΠ°ΠΌΠΎΡΡΠΎΡΡΠ΅Π»ΡΠ½ΠΎ, ΠΎΠΏΠΈΡΠ°Π½ΠΎ Π·Π΄Π΅ΡΡ. Π ΡΠ»ΡΡΠ°Π΅ Π½Π΅ΡΠ²Π΅ΡΠ΅Π½Π½ΠΎΡΡΠΈ Π² ΡΠ²ΠΎΠΈΡ ΡΠΈΠ»Π°Ρ , Π²Π½ΠΈΠΌΠ°Π½ΠΈΡ ΠΏΡΠ΅Π΄Π»Π°Π³Π°Π΅ΡΡΡ ΡΠΊΠ»Π°Π΄ΠΊΠ° ΠΏΠΎΠ΄Π»ΠΎΠΆΠΊΠΈ ΠΏΠΎΠ΄ Π»Π°ΠΌΠΈΠ½Π°Ρ, Π²ΠΈΠ΄Π΅ΠΎ ΠΊΠΎΡΠΎΡΠΎΠΉ Π΄ΠΎΡΡΡΠΏΠ½ΠΎ Π΄Π»Ρ Π΄ΠΈΠ»Π΅ΡΠ°Π½ΡΠΎΠ².
ΠΠ°ΠΊΠ»ΡΡΠ΅Π½ΠΈΠ΅
ΠΡΠ°Π²ΠΈΠ»ΡΠ½Π°Ρ ΡΠΊΠ»Π°Π΄ΠΊΠ° ΠΏΠΎΠ΄Π»ΠΎΠΆΠΊΠΈ ΠΏΠΎΠ΄ Π»Π°ΠΌΠΈΠ½Π°Ρ ΡΠ²ΠΎΠΈΠΌΠΈ ΡΡΠΊΠ°ΠΌΠΈ Π·Π°Π²ΠΈΡΠΈΡ ΠΎΡ ΡΠΎΠ±Π»ΡΠ΄Π΅Π½ΠΈΡ Π²ΡΠ΅Ρ ΠΏΡΠΎΡΠ΅ΡΡΠΎΠ², Ρ Π½Π΅ΠΉ ΡΠ²ΡΠ·Π°Π½Π½ΡΡ . Π’ΠΎΠ»ΡΠΊΠΎ ΡΠΎΠ³Π΄Π° Π½Π°ΠΏΠΎΠ»ΡΠ½ΠΎΠ΅ ΠΏΠΎΠΊΡΡΡΠΈΠ΅ ΠΎΡΡΠ°Π½Π΅ΡΡΡ Π² ΠΏΠ΅ΡΠ²ΠΎΠ½Π°ΡΠ°Π»ΡΠ½ΠΎΠΌ Π²ΠΈΠ΄Π΅ Π΄ΠΎΠ»Π³ΠΎΠ΅ Π²ΡΠ΅ΠΌΡ.
ΠΡΠ»ΠΈ Π²Ρ Π½Π°ΡΠ»ΠΈ ΠΎΡΠΈΠ±ΠΊΡ, ΠΏΠΎΠΆΠ°Π»ΡΠΉΡΡΠ°, Π²ΡΠ΄Π΅Π»ΠΈΡΠ΅ ΡΡΠ°Π³ΠΌΠ΅Π½Ρ ΡΠ΅ΠΊΡΡΠ° ΠΈ Π½Π°ΠΆΠΌΠΈΡΠ΅ Ctrl+Enter.
ΠΡΠ°Π²ΠΈΠ»ΡΠ½Π°Ρ ΡΠΊΠ»Π°Π΄ΠΊΠ° Π»Π°ΠΌΠΈΠ½Π°ΡΠ° Π±Π΅Π· ΡΡΡΠΊΠΎΠ² ΠΏΠΎ Π²ΡΠ΅ΠΉ ΠΊΠ²Π°ΡΡΠΈΡΠ΅ ΠΏΠΎ Π²ΡΠ΅ΠΌ ΠΏΡΠ°Π²ΠΈΠ»Π°ΠΌ
ΠΡΠ΅Π΄Π²ΠΎΡΠΈΡΠ΅Π»ΡΠ½Π°Ρ ΠΏΠΎΠ³ΠΎΡΠΎΠ²ΠΊΠ°
ΠΠ»ΠΎΡΠ°Π΄Ρ Π±ΠΎΠ»Π΅Π΅ 120 ΠΊΠ²Π°Π΄ΡΠ°ΡΠ½ΡΡ ΠΌΠ΅ΡΡΠΎΠ² ΠΏΠΎΠΊΡΡΠ²Π°ΡΡ Π»Π°ΠΌΠΈΠ½Π°ΡΠΎΠΌ Π±Π΅Π· ΡΡΡΠΊΠΎΠ² ΠΏΠΎ Π²ΡΠ΅ΠΉ ΠΊΠ²Π°ΡΡΠΈΡΠ΅ Π½Π°ΡΡΠΎΠΉΡΠΈΠ²ΠΎ Π½Π΅ ΡΠ΅ΠΊΠΎΠΌΠ΅Π½Π΄ΡΠ΅ΡΡΡ ΠΈΠ·-Π·Π° ΡΠΎΠ³ΠΎ ΡΡΠΎ ΡΠ°Π½Ρ Π²Π·Π΄ΡΡΠΈΡ ΠΏΠΎΠΊΡΡΡΠΈΡ Π±ΡΠ΄Π΅Ρ ΠΎΡΠ΅Π½Ρ Π²ΡΡΠΎΠΊΠΈΠΌ.
ΠΡΠ΅ΠΆΠ΄Π΅ Π²ΡΠ΅Π³ΠΎ, Π½ΡΠΆΠ½ΠΎ ΠΏΠΎΠ΄Π³ΠΎΡΠΎΠ²ΠΈΡΡ ΠΏΠΎΠ²Π΅ΡΡ Π½ΠΎΡΡΡ, Π½Π° ΠΊΠΎΡΠΎΡΡΡ ΠΈ Π±ΡΠ΄Π΅Ρ ΡΠΊΠ»Π°Π΄ΡΠ²Π°ΡΡΡΡ Π»Π°ΠΌΠΈΠ½Π°Ρ. ΠΠ½Π° Π΄ΠΎΠ»ΠΆΠ½Π° Π±ΡΡΡ ΠΈΠ΄Π΅Π°Π»ΡΠ½ΠΎ ΡΠΎΠ²Π½ΠΎΠΉ ΠΏΠ΅ΡΠ΅ΠΏΠ°Π΄ Π²ΡΡΠΎΡΡ Π½Π° Π½Π΅ΠΉ Π½Π΅ Π΄ΠΎΠ»ΠΆΠ΅Π½ ΠΏΡΠ΅Π²ΡΡΠ°ΡΡ ΡΡΠ΅Ρ ΡΠ°Π½ΡΠΈΠΌΠ΅ΡΡΠΎΠ² Π²ΠΏΠ°Π΄ΠΈΠ½Ρ ΠΈ Π²ΡΡΠΎΡΡ Π½Π΅ΠΎΠ±Ρ ΠΎΠ΄ΠΈΠΌΠΎ Π·Π°ΡΠΏΠ°ΠΊΠ»Π΅Π²Π°ΡΡ ΠΈ Π·Π°ΡΠΈΡΡΠΈΡΡ. ΠΠΎΡΠΊΠΎΠ»ΡΠΊΡ ΡΠΊΠ»Π°Π΄ΠΊΠ° Π»Π°ΠΌΠΈΠ½Π°ΡΠ° Π±ΡΠ΄Π΅Ρ Π±Π΅Π· ΡΡΡΠΊΠΎΠ² ΠΏΠΎ Π²ΡΠ΅ΠΉ ΠΊΠ²Π°ΡΡΠΈΡΠ΅ Π²Π°ΠΌ Π½Π΅ΠΎΠ±Ρ ΠΎΠ΄ΠΈΠΌΠΎ ΡΡΠ°Π·Ρ ΠΆΠ΅ ΠΏΡΠΎΡΡΠΈΡΠ°ΡΡ Π²ΡΡΠΎΡΡ Π΄Π²Π΅ΡΠ΅ΠΉ ΠΌΠ΅ΠΆΠ΄Ρ ΠΊΠΎΠΌΠ½Π°ΡΠ°ΠΌΠΈ. ΠΡ Π½ΡΠΆΠ½ΠΎ Π±ΡΠ΄Π΅Ρ ΠΎΡΠΊΠΎΡΡΠ΅ΠΊΡΠΈΡΠΎΠ²Π°ΡΡ, ΡΠ°ΠΊ ΡΡΠΎ Π±Ρ Π΄Π²Π΅ΡΡ ΡΠ²ΠΎΠ±ΠΎΠ΄Π½ΠΎ ΠΎΡΠΊΡΡΠ²Π°Π»Π°ΡΡ ΠΈ Π·Π°ΠΊΡΡΠ²Π°Π»Π°ΡΡ ΠΏΡΠΈ ΡΠ°ΡΡΡΠΎΡΠ½ΠΈΠΈ ΠΌΠ΅ΠΆΠ΄Ρ Π½Π΅ΠΉ ΠΈ ΠΏΠΎΠ»ΠΎΠΌ ΠΎΠΊΠΎΠ»ΠΎ ΡΠ°Π½ΡΠΈΠΌΠ΅ΡΡΠ°.
ΠΠ»Ρ ΡΠ°Π±ΠΎΡΡ Ρ Π»Π°ΠΌΠΈΠ½Π°ΡΠΎΠΌ Π²Π°ΠΌ ΠΏΠΎΠ½Π°Π΄ΠΎΠ±ΡΡΡΡ Π²ΡΠ΅Π³ΠΎ Π½Π΅ΡΠΊΠΎΠ»ΡΠΊΠΎ ΠΈΠ½ΡΡΡΡΠΌΠ΅Π½ΡΠΎΠ²:
- ΡΡΠ»Π΅ΡΠΊΠ°;
- ΡΠ»Π΅ΠΊΡΡΠΎΠ»ΠΎΠ±Π·ΠΈΠΊ;
- ΠΊΠ°ΡΠ°Π½Π΄Π°Ρ;
- ΡΡΡΠΎΠΈΡΠ΅Π»ΡΠ½ΡΠΉ ΠΌΠ΅ΡΡ;
- ΡΠ³ΠΎΠ»ΡΠ½ΠΈΠΊ.
ΠΠ΅ ΡΡΠΎΠΈΡ ΠΏΠΎΠΊΡΠΏΠ°ΡΡ ΡΠΏΠ΅ΡΠΈΠ°Π»ΠΈΠ·ΠΈΡΠΎΠ²Π°Π½Π½ΡΠ΅ ΠΏΠΈΠ»Ρ, ΠΈΠ·ΠΌΠ΅ΡΠΈΡΠ΅Π»ΡΠ½ΡΠ΅ ΠΈΠ½ΡΡΡΡΠΌΠ΅Π½ΡΡ ΠΈ ΡΠ»Π΅ΠΊΡΡΠΎΠΏΡΠΈΠ±ΠΎΡΡ Π΄Π»Ρ Π»Π°ΠΌΠΈΠ½Π°ΡΠ°. ΠΠΎΠ»ΡΡΠΈΠ½ΡΡΠ²ΠΎ ΡΠ°ΠΊΠΎΠ²ΡΡ ΡΠ²Π»ΡΡΡΡΡ ΡΠ΅ΠΊΠ»Π°ΠΌΠ½ΡΠΌΠΈ ΡΠ»ΠΎΠ²ΠΊΠ°ΠΌΠΈ ΠΈΠ»ΠΈ ΠΏΡΠΎΡΡΠΎ ΠΈΠ·Π»ΠΈΡΠ½Π΅ ΡΡΠ½ΠΊΡΠΈΠΎΠ½Π°Π»ΡΠ½Ρ.
ΠΡ ΠΈ ΠΊΠΎΠ½Π΅ΡΠ½ΠΎ Π²Π°ΠΌ Π½ΡΠΆΠ½ΠΎ Π²ΡΠ±ΡΠ°ΡΡ Π»Π°ΠΌΠΈΠ½Π°Ρ ΠΊΠΎΡΠΎΡΡΠΉ ΠΏΠΎ Π²ΠΈΠ΄Ρ Π΄Π΅Π»ΠΈΡΡΡΡ Π½Π°:
- Π³Π»ΡΠ½ΡΠ΅Π²ΡΠ΅/ΡΠ΅Π»ΠΊΠΎΠ²ΠΈΡΡΠΎ-Π³Π»ΡΠ½ΡΠ΅Π²ΡΠ΅;
- Π½Π°ΡΡΡΠ°Π»ΡΠ½ΡΠ΅;
- Π²ΠΎΡΡΠ½ΡΠ΅;
- ΡΠ΅ΠΊΡΡΡΡΠ½ΡΠ΅/ΡΠ΅Π»ΡΠ΅ΡΠ½ΡΠ΅;
- ΠΌΠ°ΡΠΎΠ²ΡΠ΅;
- ΠΊΠ°Π½ΡΡΠΈ;
- Π΄Π΅ΡΠ΅Π²ΠΎ.

ΠΠ°ΠΆΠ΄ΡΠΉ ΠΈΠ· Π½ΠΈΡ ΡΠ°Π·Π»ΠΈΡΠ°Π΅ΡΡΡ ΠΏΠΎ ΡΠ΅Π½Π΅ ΠΈ ΠΏΡΠ΅Π΄Π½Π°Π·Π½Π°ΡΠ΅Π½ΠΈΡ Π²ΠΏΠ»ΠΎΡΡ Π΄Π»Ρ ΠΊΠΎΠ½ΠΊΡΠ΅ΡΠ½ΡΡ ΡΠΈΠΏΠΎΠ² ΠΏΠΎΠΌΠ΅ΡΠ΅Π½ΠΈΠΉ ΠΈ ΠΏΠΎ ΠΏΠΎΠ²ΠΎΠ΄Ρ Π²ΡΠ±ΠΎΡΠ° ΡΠΎΠ³ΠΎ ΠΈΠ»ΠΈ ΠΈΠ½ΠΎΠ³ΠΎ Π»Π°ΠΌΠΈΠ½Π°ΡΠ° Π½ΡΠΆΠ½ΠΎ ΠΊΠΎΠ½ΡΡΠ»ΡΡΠΈΡΠΎΠ²Π°ΡΡΡΡ Ρ ΠΏΡΠΎΠ΄Π°Π²ΡΠΎΠΌ.
ΠΡΠ΅Π½Ρ Π²Π°ΠΆΠ½ΠΎ ΡΠ±Π΅Π΄ΠΈΡΡΡΡ, ΡΡΠΎ Π²Π»Π°ΠΆΠ½ΠΎΡΡΡ Π² ΠΏΠΎΠΌΠ΅ΡΠ΅Π½ΠΈΡΡ , Π³Π΄Π΅ Π±ΡΠ΄Π΅Ρ ΡΠΊΠ»Π°Π΄ΡΠ²Π°ΡΡΡΡ Π»Π°ΠΌΠΈΠ½Π°Ρ, Π½Π΅ Π±ΡΠ΄Π΅Ρ ΠΏΡΠ΅Π²ΡΡΠ°ΡΡ Π΄ΠΎΠΏΡΡΡΠΈΠΌΡΡ ΠΌΠ°ΡΠ΅ΡΠΈΠ°Π»ΠΎΠΌ Π½ΠΎΡΠΌ. ΠΠ½Π°ΡΠ΅ ΠΌΠ°ΡΠ΅ΡΠΈΠ°Π», Π²ΡΡΡΡ Π°Ρ, Π±ΡΠ΄Π΅Ρ Π΄Π΅ΡΠΎΡΠΌΠΈΡΠΎΠ²Π°ΡΡΡΡ ΠΈ Π²Π·Π΄ΡΠ²Π°ΡΡΡΡ.
ΠΡΠ»ΠΈ Π²Ρ ΡΠΎΠ±ΡΠ°Π»ΠΈΡΡ ΡΠΊΠ»Π°Π΄ΡΠ²Π°ΡΡ ΠΏΠ»Π°ΡΠΊΠΈ Π½Π° ΡΠ΅ΡΠ½ΠΎΠ²ΠΎΠ΅ ΠΎΡΠ½ΠΎΠ²Π°Π½ΠΈΠ΅ ΠΈΠ· Π΄Π΅ΡΠ΅Π²ΡΠ½Π½ΡΡ Π΄ΠΎΡΠΎΠΊ, ΡΠΎ Π½Π΅ ΠΏΠΎΠ»Π΅Π½ΠΈΡΠ΅ΡΡ ΠΈ ΠΏΡΠΎΠ²Π΅ΡΡΡΠ΅ ΠΊΠ°ΠΆΠ΄ΡΡ ΠΈΠ· Π½ΠΈΡ . ΠΠΎΠ΄Π³Π½ΠΈΠ²ΡΠΈΠ΅ ΠΈ Π΄Π΅ΡΠΎΡΠΌΠΈΡΠΎΠ²Π°Π½Π½ΡΠ΅ Π΄ΠΎΡΠΊΠΈ ΠΎΠ±ΡΠ·Π°ΡΠ΅Π»ΡΠ½ΠΎ Π·Π°ΠΌΠ΅Π½ΠΈΡΠ΅. ΠΡΠ»ΠΈ ΠΆΠ΅ ΡΡΠ΅Π΄ΠΈ Π½ΠΈΡ Π΅ΡΡΡ Π΄ΠΎΡΠΊΠΈ Ρ ΡΡΠ΅ΡΠΈΠ½Π°ΠΌΠΈ, Π½Π΅ ΡΠΎΠΌΠ½Π΅Π²Π°ΠΉΡΠ΅ΡΡ, Π° Π·Π°ΠΌΠ΅Π½ΠΈΡΠ΅ ΠΈ ΠΈΡ ΡΡΠΎ Π±Ρ Π΄Π΅ΡΠ΅Π²ΠΎ Π½ΠΈ ΠΏΠΎΠ²Π΅Π»ΠΎ. ΠΠ΅ Π·Π°Π±ΡΠ²Π°ΠΉΡΠ΅, ΡΡΠΎ Π»Π°ΠΌΠΈΠ½Π°Ρ Π½Π° ΡΠ°ΠΊΠΎΠ΅ ΠΎΡΠ½ΠΎΠ²Π°Π½ΠΈΠ΅ Π»ΠΎΠΆΠΈΡΡΡΡ Π² ΡΠΎΠΌ ΠΆΠ΅ Π½Π°ΠΏΡΠ°Π²Π»Π΅Π½ΠΈΠ΅ ΡΡΠΎ ΠΈ Π΄ΠΎΡΠΊΠΈ.
ΠΠ° ΠΎΡΠ½ΠΎΠ²Ρ, ΡΠ΅ΠΌΠ΅Π½ΡΠ½ΡΡ ΡΡΡΠΆΠΊΡ ΠΈΠ»ΠΈ ΠΏΡΠΎΡΡΠΎ ΠΏΠΎΠ» Π½ΡΠΆΠ½ΠΎ ΠΏΠΎΠ»ΠΎΠΆΠΈΡΡ ΠΏΠΎΠ΄Π»ΠΎΠΆΠΊΡ. ΠΠ°ΠΊ ΠΏΡΠ°Π²ΠΈΠ»ΠΎ, Π΅ΠΉ ΡΠ²Π»ΡΠ΅ΡΡΡ Π²ΡΠΏΠ΅Π½Π΅Π½Π½ΡΠΉ ΠΏΠΎΠ»ΠΈΡΡΠΈΠ»Π΅Π½ ΠΈΠ»ΠΈ ΠΏΡΠΎΠ±ΠΊΠΎΠ²ΡΠΉ ΠΌΠ°ΡΠ΅ΡΠΈΠ°Π». Π’Π°ΠΊΠ°Ρ ΠΏΠΎΠ΄Π»ΠΎΠΆΠΊΠ° Π½ΡΠΆΠ½Π° Π½Π΅ ΡΠΎΠ»ΡΠΊΠΎ Π΄Π»Ρ ΡΡΠ΅ΠΏΠ»Π΅Π½ΠΈΡ ΠΈ ΡΡΠΌΠΎΠΈΠ·ΠΎΠ»ΡΡΠΈΠΈ Π½ΠΎ ΠΈ Π΄Π»Ρ Π·Π°ΡΠΈΡΡ Π½Π°ΡΡΠΈΠ»Π° ΠΎΡ Π΄Π΅ΡΠΎΡΠΌΠ°ΡΠΈΠΈ ΡΡΠΎ Π·Π½Π°ΡΠΈΡΠ΅Π»ΡΠ½ΠΎ ΠΏΡΠΎΠ΄Π»ΠΈΡ ΡΡΠΎΠΊ ΡΠ»ΡΠΆΠ±Ρ ΠΏΠΎΠ»Π°.
ΠΡΠ»ΠΈ Ρ Π²Π°Ρ Π΅ΡΡΡ Π·Π°ΡΡΡΠ΄Π½Π΅Π½ΠΈΠ΅ Ρ ΡΠ΅ΠΌ ΡΡΠΎ Π±Ρ Π½Π°ΠΉΡΠΈ ΠΏΠΎΠ΄Ρ
ΠΎΠ΄ΡΡΠΈΠΉ ΠΌΠ°ΡΠ΅ΡΠΈΠ°Π» Π΄Π»Ρ ΠΏΠΎΠ΄Π»ΠΎΠΆΠΊΠΈ ΠΌΠΎΠΆΠ½ΠΎ Π²Π·ΡΡΡ ΡΠ΅Π»ΡΠ΅ΡΠ½ΡΠΉ ΠΊΠ°ΡΡΠΎΠ½ ΠΈ ΡΠ°Π·Π»ΠΎΠΆΠΈΡΡ Π² Π½Π΅ΡΠΊΠΎΠ»ΡΠΊΠΎ ΡΠ»ΠΎΠ΅Π², ΡΠΊΡΠ΅ΠΏΠΈΡΡ ΡΠΊΠΎΡΡΠ΅ΠΌ. Π’ΠΎΠ»ΡΠΈΠ½Π° ΠΏΠΎΠ΄Π»ΠΎΠΆΠΊΠΈ Π΄ΠΎΠ»ΠΆΠ½Π° Π±ΡΡΡ Π²ΡΠ΅Π³ΠΎ 2 — 4 ΠΌΠΈΠ»Π»ΠΈΠΌΠ΅ΡΡΠΎΠ².
ΠΠ΅ Π²Π·Π΄ΡΠΌΠ°ΠΉΡΠ΅ ΠΈΡΠΏΠΎΠ»ΡΠ·ΠΎΠ²Π°ΡΡ ΡΡΠ°ΡΡΠΉ ΠΊΠΎΠ²ΡΠΎΠ»ΠΈΠ½ Ρ Π²ΡΡΠΎΠΊΠΈΠΌ Π²ΠΎΡΡΠΎΠΌ ΠΈΠ»ΠΈ ΠΊΠΎΠ²Π΅Ρ Π² ΠΊΠ°ΡΠ΅ΡΡΠ²Π΅ ΡΠ΅ΡΠ½ΠΎΠ²ΠΎΠΉ ΠΎΡΠ½ΠΎΠ²Ρ. Π’Π°ΠΊΠ°Ρ ΠΎΡΠ½ΠΎΠ²Π° Ρ ΠΎΡΡ ΠΈ Π½Π΅ Π±ΡΠ΄Π΅Ρ Π½ΡΠΆΠ΄Π°ΡΡΡΡ Π² ΠΏΠΎΠ΄Π»ΠΎΠΆΠΊΠ΅, Π½ΠΎ Π±ΡΠ΄Π΅Ρ ΡΠ»ΠΈΡΠΊΠΎΠΌ ΠΌΡΠ³ΠΊΠΎΠΉ.
ΠΠ°ΠΊ ΠΏΡΠ°Π²ΠΈΠ»ΠΎ, ΠΎΡΠ½ΠΎΠ²Π° ΠΏΠ»Π°ΡΠ΅ΠΊ ΡΠ΄Π΅Π»Π°Π½Π° ΠΈΠ· Π΄Π΅ΡΠ΅Π²Π°. Π ΡΡΠΎ Π·Π½Π°ΡΠΈΡ, ΡΡΠΎ ΠΏΡΠΈ ΠΏΠΎΠΏΠ°Π΄Π°Π½ΠΈΠΈ Π²Π»Π°Π³ΠΈ ΠΎΠ½ΠΈ ΠΌΠΎΠ³ΡΡ ΡΠ°ΡΡΠΈΡΡΡΡΡΡ. ΠΠΎΡΡΠΎΠΌΡ Π½ΡΠΆΠ½ΠΎ Π±ΡΠ΄Π΅Ρ ΠΎΡΡΠ°Π²Π»ΡΡΡ ΡΠ΅Ρ Π½ΠΈΡΠ΅ΡΠΊΠΈΠ΅ Π·Π°Π·ΠΎΡΡ Π²Π΄ΠΎΠ»Ρ ΡΡΠ΅Π½ ΡΠ°Π·ΠΌΠ΅ΡΠΎΠΌ Π² 5 — 10 ΠΌΠΈΠ»Π»ΠΈΠΌΠ΅ΡΡΠΎΠ². Π§ΡΠΎ Π±Ρ ΡΠ΄Π΅Π»Π°ΡΡ ΡΠ°ΠΊΠΈΠ΅ Π·Π°Π·ΠΎΡΡ ΠΈ Π½Π΅ ΠΎΡΠ²Π»Π΅ΠΊΠ°ΡΡΡΡ Π½Π° ΠΏΠΎΡΡΠΎΡΠ½Π½ΡΡ ΠΊΠΎΡΡΠ΅ΠΊΡΠΈΡΠΎΠ²ΠΊΡ Π½Π΅ΡΠΎΠ²Π½ΠΎΡΡΠΈ ΡΠΆΠ΅ ΡΠ»ΠΎΠΆΠ΅Π½Π½ΡΡ ΠΏΠ»Π°ΡΠ΅ΠΊ ΠΌΠ΅ΠΆΠ΄Ρ ΡΡΠ΅Π½ΠΎΠΉ ΠΈ Π»Π°ΠΌΠΈΠ½Π°ΡΠΎΠΌ Π²ΡΡΠ°Π²ΡΡΠ΅ ΠΏΠ»Π°ΡΡΠΈΠΊΠΎΠ²ΡΠ΅ Π·Π°Π³Π»ΡΡΠΊΠΈ, Π° ΠΏΠΎΡΠ»Π΅ ΠΎΠΊΠΎΠ½ΡΠ°Π½ΠΈΡ ΠΌΠΎΠ½ΡΠ°ΠΆΠ° ΠΏΡΠΎΡΡΠΎ Π²ΡΠ½ΡΡΠ΅.
ΠΠ°ΡΠΈΠ°Π½ΡΡ ΡΠΊΠ»Π°Π΄ΠΊΠΈ Π»Π°ΠΌΠΈΠ½Π°ΡΠ°
ΠΠΎΠ³Π΄Π° ΠΏΠΎΠ΄Π³ΠΎΡΠΎΠ²ΠΊΠ° ΠΊ ΠΏΡΠ΅Π΄ΡΡΠΎΡΡΠ΅ΠΉ ΡΠΊΠ»Π°Π΄ΠΊΠ΅ Π·Π°Π²Π΅ΡΡΠ΅Π½Π° Π²Π°ΠΌ Π½ΡΠΆΠ½ΠΎ Π±ΡΠ΄Π΅Ρ Π²ΡΠ±ΡΠ°ΡΡ ΠΏΠΎΠ΄Ρ
ΠΎΠ΄ΡΡΠΈΠΉ ΠΈΠΌΠ΅Π½Π½ΠΎ Π²Π°ΠΌ Π²Π°ΡΠΈΠ°Π½Ρ ΡΠΊΠ»Π°Π΄ΠΊΠΈ Π»Π°ΠΌΠΈΠ½Π°ΡΠ° Π±Π΅Π· ΡΡΡΠΊΠΎΠ² ΠΏΠΎ Π²ΡΠ΅ΠΉ ΠΊΠ²Π°ΡΡΠΈΡΠ΅.
Π‘ΡΡΠ΅ΡΡΠ²ΡΠ΅Ρ Π΄Π²Π° ΡΠΏΠΎΡΠΎΠ±Π° ΡΠΎ ΡΠ²ΠΎΠΈΠΌΠΈ Π΄ΠΎΡΡΠΎΠΈΠ½ΡΡΠ²Π°ΠΌΠΈ ΠΈ Π½Π΅Π΄ΠΎΡΡΠ°ΡΠΊΠ°ΠΌΠΈ.
ΠΠ΅ΡΠ²ΡΠΉ Π²Π°ΡΠΈΠ°Π½Ρ ΡΠ°Π½ΡΡΠ΅ Π±ΡΠ» ΠΎΡΠ΅Π½Ρ ΡΠ°ΡΠΏΡΠΎΡΡΡΠ°Π½Π΅Π½, ΡΠ°ΠΊ ΠΊΠ°ΠΊ Π½Π΅ ΠΈΠΌΠ΅Π» Π΄ΠΎΡΡΠΎΠΉΠ½ΠΎΠ³ΠΎ ΠΊΠΎΠ½ΠΊΡΡΠ΅Π½ΡΠ°. ΠΡΠΎ Π²Π°ΡΠΈΠ°Π½Ρ, ΠΏΡΠΈ ΠΊΠΎΡΠΎΡΠΎΠΌ ΠΊΠ°ΠΆΠ΄Π°Ρ ΡΠΊΠ»Π°Π΄ΡΠ²Π°Π΅ΠΌΠ°Ρ ΠΏΠ»Π°ΡΠΊΠ° ΠΊΡΠ΅ΠΏΠΈΡΡΡ ΠΊ ΠΏΡΠ΅Π΄ΡΠ΄ΡΡΠ΅ΠΉ ΠΏΠ»Π°ΡΠΊΠ΅ Ρ ΠΏΠΎΠΌΠΎΡΡΡ ΠΊΠ»Π΅Ρ. ΠΠ»Π°Π³ΠΎΠ΄Π°ΡΡ ΡΡΠΎΠΌΡ ΡΠ΅Π»ΠΈ Π² Π»Π°ΠΌΠΈΠ½Π°ΡΠ΅ ΡΡΠ°Π½ΠΎΠ²ΠΈΡΡΡΡ Π³Π΅ΡΠΌΠ΅ΡΠΈΡΠ½ΡΠΌΠΈ, ΡΡΠΎ Π΄Π΅Π»Π°Π΅Ρ Π΅Π³ΠΎ Π·Π°ΡΠΈΡΡΠ½Π½ΡΠΌ ΠΏΠ΅ΡΠ΅Π΄ Π²Π»Π°Π³ΠΎΠΉ ΠΈ ΠΏΡΠ»ΡΡ. ΠΠ»Ρ Π½Π΅Π³ΠΎ ΠΎΡΠ»ΠΈΡΠ½ΠΎ ΠΏΠΎΠ΄ΠΎΠΉΠ΄Π΅Ρ Π²Π»Π°Π³ΠΎΡΡΠΎΠΉΠΊΠΈΠΉ ΠΠΠ Π² ΠΊΠ°ΡΠ΅ΡΡΠ²Π΅ ΠΎΡΠ½ΠΎΠ²Ρ, ΡΠ°ΠΊ ΠΊΠ°ΠΊ ΡΠΎΠ³Π΄Π° Β«ΠΏΠ»Π°Π²Π°ΡΡΠΈΠΉΒ» ΠΏΠΎΠ» Π½Π΅ Π΄Π°ΡΡ Π΄Π΅ΡΠΎΡΠΌΠ°ΡΠΈΠΉ. ΠΠΎ ΡΠ°ΠΊΠΎΠΉ ΠΏΠΎΠ» Π½Π΅Π²ΠΎΠ·ΠΌΠΎΠΆΠ½ΠΎ Π±ΡΠ΄Π΅Ρ Π΄Π΅ΠΌΠΎΠ½ΡΠΈΡΠΎΠ²Π°ΡΡ ΠΈΠ»ΠΈ ΠΈΡΠΏΡΠ°Π²ΠΈΡΡ Π΄Π°ΠΆΠ΅ ΡΠ°ΠΌΡΡ Π½Π΅Π·Π½Π°ΡΠΈΡΠ΅Π»ΡΠ½ΡΡ ΠΎΡΠΈΠ±ΠΊΡ, ΡΠΎΠ²Π΅ΡΡΡΠ½Π½ΡΡ ΠΏΡΠΈ ΠΌΠΎΠ½ΡΠ°ΠΆΠ΅.
ΠΡΠΎΡΡΠΌ Π²Π°ΡΠΈΠ°Π½ΡΠΎΠΌ ΡΠ²Π»ΡΠ΅ΡΡΡ ΡΠ°ΠΊ Π½Π°Π·ΡΠ²Π°Π΅ΠΌΡΠΉ Β«Π·Π°ΠΌΠΊΠΎΠ²ΡΠΉΒ». ΠΠ½ ΡΠ΄ΠΎΠ±Π΅Π½ ΠΈ ΠΏΡΠ°ΠΊΡΠΈΡΠ΅Π½, Π½ΠΎ Π±ΠΎΠ»Π΅Π΅ Π΄ΠΎΡΠΎΠ³ΠΎΡΡΠΎΡΡΠΈΠΉ, ΡΠ°ΠΊ ΠΊΠ°ΠΊ ΠΏΠ°Π½Π΅Π»ΠΈ ΡΠ½Π°Π±ΠΆΠ΅Π½Ρ Π·Π°ΡΠ΅Π»ΠΊΠΈΠ²Π°ΡΡΠΈΠΌΠΈΡΡ ΠΏΡΠΎΡΠΈΠ»ΡΠΌΠΈ. ΠΡΠΏΠΎΠ»ΡΠ·ΡΡ Π΅Π³ΠΎ Ρ Π²Π°Ρ Π±ΡΠ΄Π΅Ρ ΠΎΠ³ΡΠΎΠΌΠ½ΡΠΉ ΠΏΡΠΎΡΡΠΎΡ Π΄Π»Ρ ΡΠΎΡΠ½ΠΎΠΉ ΠΏΠΎΠ΄Π³ΠΎΠ½ΠΊΠΈ ΠΏΠΎΠ»Π°, ΡΡΠΎ ΠΏΠΎΠΌΠΎΠΆΠ΅Ρ Π·Π½Π°ΡΠΈΡΠ΅Π»ΡΠ½ΠΎ Π»Π΅Π³ΡΠ΅ ΡΠ»ΠΎΠΆΠΈΡΡ ΠΏΠ»Π°ΡΠΊΠΈ, Π² Π΄Π²Π΅ΡΠ½ΠΎΠΌ ΠΏΡΠΎΠ΅ΠΌΠ΅ ΠΈΠ·Π±Π΅ΠΆΠ°Π² ΡΡΡΠΊΠΎΠ². Π’Π°ΠΊΠΆΠ΅ ΠΌΠ½ΠΎΠ³ΠΎ Π»Π°ΠΌΠΈΠ½Π°ΡΠ° ΡΠ΄Π΅Π»Π°Π½Π½ΠΎΠ³ΠΎ ΠΈΠ· ΡΠ°ΠΌΡΡ
ΡΠ°Π·Π½ΠΎΠΎΠ±ΡΠ°Π·Π½ΡΡ
ΠΌΠ°ΡΠ΅ΡΠΈΠ°Π»ΠΎΠ² ΡΠ΄Π΅Π»Π°Π½ΠΎ Ρ Π·Π°ΠΌΠΊΠ°ΠΌΠΈ, ΡΡΠΎ ΠΏΠΎΠ·Π²ΠΎΠ»ΡΡΡ ΠΊΠ»Π°ΡΡΡ Π΅Π³ΠΎ Π² Π»ΡΠ±ΠΎΠΌ Π½Π°ΠΏΡΠ°Π²Π»Π΅Π½ΠΈΠ΅.
Π Π°Π΄ΡΠ΅Ρ ΠΈ ΡΠΎ, ΡΡΠΎ ΠΏΡΠΈ Π½Π΅ΠΎΠ±Ρ
ΠΎΠ΄ΠΈΠΌΠΎΡΡΠΈ Π²Π΅ΡΡ ΠΏΠΎΠ» ΠΈΠ»ΠΈ Π΅Π³ΠΎ ΡΠ°ΡΡΡ ΠΌΠΎΠΆΠ½ΠΎ Ρ Π»Π΅Π³ΠΊΠΎΡΡΡΡ ΡΠ°Π·ΠΎΠ±ΡΠ°ΡΡ, Π° ΡΠ°ΠΌ ΠΌΠΎΠ½ΡΠ°ΠΆ ΠΏΡΠΎΠΈΡΡ
ΠΎΠ΄ΠΈΡ Π½Π°ΠΌΠ½ΠΎΠ³ΠΎ Π±ΡΡΡΡΠ΅Π΅, ΡΠ΅ΠΌ Π² ΡΠ»ΡΡΠ°Π΅ Ρ ΠΊΠ»Π΅Π΅Π²ΠΎΠΉ ΠΊΠ»Π°Π΄ΠΊΠΎΠΉ.
ΠΡΠ°Π²ΠΈΠ»Π° ΡΠΊΠ»Π°Π΄ΠΊΠΈ Π»Π°ΠΌΠΈΠ½Π°ΡΠ°
ΠΠ»Ρ Π½Π°ΡΠ°Π»Π° Π½ΡΠΆΠ½ΠΎ ΠΊΡΠ΅ΠΏΠΊΠΎ Π·Π°ΠΏΠΎΠΌΠ½ΠΈΡΡ ΡΠΎ, ΡΡΠΎ ΡΠ΅ΠΌ Π±ΠΎΠ»ΡΡΠ΅ ΠΏΠ»ΠΎΡΠ°Π΄Ρ, Π½Π° ΠΊΠΎΡΠΎΡΠΎΠΉ ΠΏΡΠΎΠΈΠ·Π²ΠΎΠ΄ΠΈΡΡΡΡ ΡΠΊΠ»Π°Π΄ΠΊΠ° ΡΠ΅ΠΌ Π±ΠΎΠ»ΡΡΠ΅ ΡΠ°Π½Ρ Π²Π·Π΄ΡΡΠΈΡ ΠΏΠΎΠ»Π°. ΠΠ»Ρ ΡΠΎΠ³ΠΎ ΡΡΠΎ Π±Ρ ΡΡΠΎΠ³ΠΎ ΠΈΠ·Π±Π΅ΠΆΠ°ΡΡ ΠΌΠ΅ΠΆΠ΄Ρ ΠΏΠ»Π°ΡΠΊΠ°ΠΌΠΈ ΠΈ ΡΡΠ΅Π½Π°ΠΌΠΈ, ΡΡΡΠ±Π°ΠΌΠΈ, ΡΠ³Π»Π°ΠΌΠΈ ΠΊΠΎΠΌΠ½Π°Ρ, Π²ΡΡΡΡΠΏΠ°ΠΌΠΈ ΠΈΠ· ΠΏΠΎΠ»Π° Π½Π΅ΠΎΠ±Ρ ΠΎΠ΄ΠΈΠΌΠΎ Π²ΡΠΏΠΎΠ»Π½ΡΡΡ Π·Π°Π·ΠΎΡΡ. Π‘ΡΠ°ΡΠ°ΠΉΡΠ΅ΡΡ Π΄Π΅Π»Π°ΡΡ ΠΈΡ Π² 1 — 1.5 ΡΠ°Π½ΡΠΈΠΌΠ΅ΡΡΠ°. ΠΠΎΡΠ»Π΅ ΡΠΊΠ»Π°Π΄ΠΊΠΈ ΡΠ°ΠΊΠΈΠ΅ Π·Π°Π·ΠΎΡΡ Π»Π΅Π³ΠΊΠΎ ΠΏΡΡΡΡΡΡΡ Ρ ΠΏΠΎΠΌΠΎΡΡΡ ΠΏΠ»ΠΈΠ½ΡΡΡΠ°, ΠΊΠΎΡΠΎΡΡΠΉ ΠΊΡΠ΅ΠΏΠΈΡΡΡΡ ΠΊ ΡΡΠ΅Π½Π΅ ΠΈ Π½ΠΈ Π² ΠΊΠΎΠ΅ΠΌ ΡΠ»ΡΡΠ°Π΅ ΠΊ ΠΏΠΎΠ»Ρ.
ΠΡΠΎΠ²ΠΎΠ΄ΠΈΡΠ΅ ΡΠΊΠ»Π°Π΄ΠΊΡ ΡΠΎΠ»ΡΠΊΠΎ Π² ΡΡΡ ΠΈΡ ΡΠ΅ΠΏΠ»ΡΡ ΠΏΠΎΠΌΠ΅ΡΠ΅Π½ΠΈΡΡ Ρ ΡΠ°ΡΡΠ΅ΡΠΎΠΌ Π½Π° ΡΠΎ, ΡΡΠΎ Π²Ρ ΡΠ»ΠΎΠΆΠΈΡΠ΅ Π²Π΅ΡΡ Π»Π°ΠΌΠΈΠ½Π°Ρ Π² ΠΎΠ΄ΠΈΠ½ Π·Π°Ρ ΠΎΠ΄ Π²ΠΎ ΠΈΠ·Π±Π΅ΠΆΠ°Π½ΠΈΠ΅ Π΄Π΅ΡΠΎΡΠΌΠ°ΡΠΈΠΈ ΠΏΠΎΠ²Π΅ΡΡ Π½ΠΎΡΡΠΈ Π»Π°ΠΌΠΈΠ½Π°ΡΠ°.
Π Π΄Π²Π΅ΡΠ½ΡΡ
ΠΏΡΠΎΠ΅ΠΌΠ°Ρ
ΠΏΠΎΠ΄Π³ΠΎΠ½ΠΊΡ Π½ΡΠΆΠ½ΠΎ Π΄Π΅Π»Π°ΡΡ ΠΎΡΠ΅Π½Ρ ΡΡΠ°ΡΠ΅Π»ΡΠ½ΠΎ ΡΡΠΈΡΡΠ²Π°Ρ Π½Π΅ ΡΠΎΠ»ΡΠΊΠΎ ΠΎΡΡΡΡΠΏΡ ΠΎΡ ΠΊΠΎΡΡΠΊΠ° Π½ΠΎ ΠΈ ΡΠΎ ΡΡΠΎ Π² ΠΏΠ»Π°ΡΠΊΠ°Ρ
Π½ΡΠΆΠ½ΠΎ Π±ΡΠ΄Π΅Ρ Π²ΡΠΏΠΈΠ»ΠΈΡΡ Π²ΡΠ΅ΠΌΠΊΠΈ Π² ΡΠ°ΡΡΠ΅ΡΠ΅ Π½Π° ΡΠΎ ΡΡΠΎ ΠΎΡ Π½ΠΈΡ
ΡΡΠ°Π·Ρ ΠΈΠ΄Π΅Ρ ΠΏΠ΅ΡΠ΅Ρ
ΠΎΠ΄ Π² ΡΠ»Π΅Π΄ΡΡΡΡΡ ΠΊΠΎΠΌΠ½Π°ΡΡ.
ΠΡΠΈ Π½Π΅ΠΏΡΠ°Π²ΠΈΠ»ΡΠ½ΠΎΠΉ ΠΏΠΎΠ΄Π³ΠΎΠ½ΠΊΠ΅ Π²ΡΠ΅ ΠΎΡΡΡΡΠΏΡ Π΄Π»Ρ ΠΎΠ΄Π½ΠΎΠ³ΠΎ ΠΏΠΎΠΌΠ΅ΡΠ΅Π½ΠΈΡ Π±ΡΠ΄ΡΡ ΠΏΠΎΠΌΠ΅Ρ
ΠΎΠΉ Π΄Π»Ρ ΡΠΎΠ³ΠΎ ΡΡΠΎ Π±Ρ ΡΠ΄Π΅Π»Π°ΡΡ ΡΠ°ΠΊΠΈΠ΅ Π² ΡΠ»Π΅Π΄ΡΡΡΠ΅ΠΌ.
ΠΡΠ»ΠΈ Π²Π°ΡΠ΅ Π΄ΠΈΠ·Π°ΠΉΠ½Π΅ΡΡΠΊΠΎΠ΅ ΡΠ΅ΡΠ΅Π½ΠΈΠ΅ ΠΏΡΠ΅Π΄ΠΏΠΎΠ»Π°Π³Π°Π΅Ρ ΡΡΡΠΊΠΎΠ²ΠΊΡ Π»Π°ΠΌΠΈΠ½Π°ΡΠ° Ρ Π΄ΡΡΠ³ΠΈΠΌ ΠΏΠΎΠΊΡΡΡΠΈΠ΅ΠΌ Π² ΠΏΡΠ΅Π΄Π΅Π»Π°Ρ ΠΊΠΎΠΌΠ½Π°ΡΡ, ΡΠΎ Π²Π°ΠΌ ΡΡΠΎ Π±Ρ ΠΈΡΠΊΡΡΠ½ΠΎ Π·Π°Π΄Π΅Π»Π°ΡΡ ΡΠ΅Π»Ρ ΠΌΠ΅ΠΆΠ΄Ρ ΠΌΠ°ΡΠ΅ΡΠΈΠ°Π»Π°ΠΌΠΈ ΠΏΠΎΠ΄ΠΎΠΉΠ΄Π΅Ρ ΠΈΡΠΊΡΡΡΡΠ²Π΅Π½Π½Π°Ρ ΠΏΡΠΎΠ±ΠΊΠ°. Π‘Π²ΠΎΠΈΠΌ ΠΏΡΠΈΠΌΠ΅Π½Π΅Π½ΠΈΠ΅ΠΌ Π½Π° ΠΎΡΠ΅Π½Ρ Π½Π°ΠΏΠΎΠΌΠΈΠ½Π°Π΅Ρ ΠΌΠΎΠ½ΡΠ°ΠΆΠ½ΡΡ ΠΏΠ΅Π½Ρ. ΠΠ· ΠΏΠΈΡΡΠΎΠ»Π΅ΡΠ° Π΅Ρ Π·Π°ΠΏΠΎΠ»Π½ΡΡΡ ΠΏΡΠΎΡΡΡΠ°Π½ΡΡΠ²ΠΎ, Π·Π°ΡΠ΅ΠΌ, ΠΏΠΎΡΠ»Π΅ Π·Π°ΡΡΡΠ²Π°Π½ΠΈΡ, ΡΡΠ΅Π·Π°ΡΡ Π»ΠΈΡΠ½Π΅Π΅. ΠΠ½Π° Π½Π΅ ΠΏΠΎΠ΄Π΄Π°ΡΡΡΡ Π³Π½ΠΈΠ΅Π½ΠΈΡ ΠΈ Π±Π»Π°Π³ΠΎΠ΄Π°ΡΡ ΡΠ²ΠΎΠΈΠΌ ΡΠ²ΠΎΠΉΡΡΠ²Π°ΠΌ ΡΠΌΠΎΠΆΠ΅Ρ ΠΈ ΡΠΆΠΈΠΌΠ°ΡΡΡΡ ΠΈ ΡΠ°ΡΡΡΠ³ΠΈΠ²Π°ΡΡΡΡ, ΡΡΠΎ ΠΏΡΠ΅Π΄ΠΎΡΠ²ΡΠ°ΡΠΈΡ Π΄Π΅ΡΠΎΡΠΌΠ°ΡΠΈΡ Π»Π°ΠΌΠΈΠ½Π°ΡΠ° ΠΈ Π³ΡΠ°Π½ΠΈΡΠ°ΡΠ΅Π³ΠΎ Ρ Π½ΠΈΠΌ ΠΌΠ°ΡΠ΅ΡΠΈΠ°Π»Π°.
ΠΡΠ°Π²ΠΈΠ»ΡΠ½ΠΎ Π²ΡΠΏΠΎΠ»Π½Π΅Π½Π½Π°Ρ ΡΠΊΠ»Π°Π΄ΠΊΠ° Π»Π°ΠΌΠΈΠ½Π°ΡΠ° Π±Π΅Π· ΡΡΡΠΊΠΎΠ² ΠΏΠΎ Π²ΡΠ΅ΠΉ Π²Π°ΡΠ΅ΠΉ ΠΊΠ²Π°ΡΡΠΈΡΠ΅Β Π΅Π΄ΠΈΠ½ΡΠΌ ΠΏΠΎΠ»ΠΎΡΠ½ΠΎΠΌ ΡΠ΄Π΅Π»Π°Π΅Ρ Π²Π°Ρ ΠΏΠΎΠ» ΠΊΡΠ°ΡΠΈΠ²ΡΠΌ, ΠΏΡΠΎΡΠ½ΡΠΌ ΠΈ Π½Π°Π΄Π΅ΠΆΠ½ΡΠΌ. Π‘Π°ΠΌΠΎΠ΅ Π³Π»Π°Π²Π½ΠΎΠ΅ Π½Π΅ ΡΠΎΠ²Π΅ΡΡΠΈΡΡ ΠΎΡΠΈΠ±ΠΊΠΈ ΠΏΡΠΈ ΡΠΊΠ»Π°Π΄ΠΊΠ΅ ΠΈ ΡΡΠ΅ΡΡΡ Π½ΡΠ°Π½ΡΡ ΠΌΠΎΠ½ΡΠ°ΠΆΠ° Π² ΡΠ»ΠΎΠΆΠ½ΡΡ ΠΌΠ΅ΡΡΠ°Ρ .
Π’ΠΠ-5 ΠΎΡΠΈΠ±ΠΎΠΊ ΠΏΡΠΈ ΡΠΊΠ»Π°Π΄ΠΊΠ΅ Π»Π°ΠΌΠΈΠ½Π°ΡΠ° | Π Π΅ΠΌΡΠ»Π»Ρ β ΠΠΈΠ·Π°ΠΉΠ½ Π Π΅ΠΌΠΎΠ½Ρ ΠΠΈΠ·Π½Ρ
Π§Π°ΡΡΠΎ Π»ΡΠ΄ΠΈ ΠΏΡΡΠ°ΡΡΡΡ ΡΠΊΠΎΠ½ΠΎΠΌΠΈΡΡ Π½Π° ΡΠΊΠ»Π°Π΄ΠΊΠ΅ Π»Π°ΠΌΠΈΠ½Π°ΡΠ°, ΠΎΠ±ΠΌΠ°Π½ΡΠ²Π°ΡΡΡ ΠΎΡΠ½ΠΎΡΠΈΡΠ΅Π»ΡΠ½ΠΎΠΉ ΠΏΡΠΎΡΡΠΎΡΠΎΠΉ ΡΠ°ΠΌΠΎΠ³ΠΎ ΠΌΠ°ΡΠ΅ΡΠΈΠ°Π»Π°.
Π’Π°ΠΊΠΎΠ΅ Π½Π΅ΠΎΠ±Π΄ΡΠΌΠ°Π½Π½ΠΎΠ΅ ΡΠ΅ΡΠ΅Π½ΠΈΠ΅ ΠΏΡΠΈΠ²ΠΎΠ΄ΠΈΡ ΠΊ Π½Π΅ΠΏΠΎΠΏΡΠ°Π²ΠΈΠΌΡΠΌ ΠΏΠΎΡΠ»Π΅Π΄ΡΡΠ²ΠΈΡΠΌ, Π½Π°ΠΏΡΠΈΠΌΠ΅Ρ, Π²Π·Π΄ΡΡΠΈΠ΅ ΠΏΠΎΠ»Π°. ΠΡ Π²ΡΠ΄Π΅Π»ΠΈΠ»ΠΈ 5 ΡΠ°ΠΌΡΡ
ΠΏΠΎΠ²ΡΠΎΡΡΡΡΠΈΡ
ΡΡ ΠΎΡΠΈΠ±ΠΎΠΊ, ΠΈΠ·Π±Π΅Π³Π°Ρ ΠΊΠΎΡΠΎΡΡΠ΅, Π²Ρ ΡΠΌΠΎΠΆΠ΅ΡΠ΅ ΠΎΠ±Π΅ΡΠΏΠ΅ΡΠΈΡΡ Π΄ΠΎΠ»Π³ΡΡ ΠΆΠΈΠ·Π½Ρ ΡΠ²ΠΎΠ΅ΠΌΡ Π½Π°ΠΏΠΎΠ»ΡΠ½ΠΎΠΌΡ ΠΏΠΎΠΊΡΡΡΠΈΡ.
ΠΡΠ°Π²ΠΈΠ»ΡΠ½Π°Ρ ΡΠΊΠ»Π°Π΄ΠΊΠ° Π»Π°ΠΌΠΈΠ½Π°ΡΠ° Π½Π°ΠΈΡΠΊΠΎΡΠΎΠΊ
ΠΡΠΈΠ±ΠΊΠ° 1 — Π²Ρ Π½Π΅ ΡΡΠ»ΠΈ ΡΠ²ΠΎΠΉΡΡΠ²Π° ΠΌΠ°ΡΠ΅ΡΠΈΠ°Π»Π° ΠΏΠΎΠΊΡΡΡΠΈΡ
Π£ΠΊΠ»Π°Π΄ΡΠ²Π°Ρ Π»Π°ΠΌΠΈΠ½Π°Ρ, ΡΠ»Π΅Π΄ΡΠ΅Ρ ΠΏΠΎΠΌΠ½ΠΈΡΡ ΠΎ ΡΠΊΠ»ΠΎΠ½Π½ΠΎΡΡΠΈ ΠΌΠ°ΡΠ΅ΡΠΈΠ°Π»Π° ΠΊ ΡΠ°ΡΡΠΈΡΠ΅Π½ΠΈΡ. ΠΠΎΡΡΠ°ΡΠΎΡΠ½ΠΎ ΡΠ°ΡΡΠΎ Π»ΡΠ΄ΠΈ ΠΏΡΠΎΡΡΠΎ Π·Π°Π±ΡΠ²Π°ΡΡ ΠΎΠ± ΡΡΠΎΠΌ, ΡΡΠΎ ΠΏΡΠΈΠ²ΠΎΠ΄ΠΈΡ ΠΊ ΠΏΠΎΡΡΠ΅ ΠΏΠΎΠ»Π°. ΠΠΎΠ³Π΄Π° ΠΏΡΠΎΠΈΡΡ ΠΎΠ΄ΠΈΡ ΠΏΠ΅ΡΠ΅ΠΏΠ°Π΄ Π²Π»Π°ΠΆΠ½ΠΎΡΡΠΈ ΠΈΠ»ΠΈ ΡΠ΅ΠΌΠΏΠ΅ΡΠ°ΡΡΡΡ, Π»Π°ΠΌΠΈΠ½Π°Ρ ΠΌΠΎΠΌΠ΅Π½ΡΠ°Π»ΡΠ½ΠΎ Π²ΡΡΠ°Π΅Ρ Π΄ΡΠ±ΠΎΠΌ. ΠΠ°ΠΊ ΡΡΠΎ ΠΏΡΠ΅Π΄ΠΎΡΠ²ΡΠ°ΡΠΈΡΡ?
- ΠΠ°ΠΌΠΈΠ½Π°Ρ ΡΠ»Π΅Π΄ΡΠ΅Ρ ΡΠΊΠ»Π°Π΄ΡΠ²Π°ΡΡ ΠΏΠΎ Β«ΠΏΠ»Π°Π²Π°ΡΡΠ΅ΠΉΒ» ΡΠ΅Ρ Π½ΠΎΠ»ΠΎΠ³ΠΈΠΈ, ΠΏΡΠΈ ΠΊΠΎΡΠΎΡΠΎΠΉ Π²Π°ΠΆΠ½ΠΎ ΠΎΡΡΠ°Π²Π»ΡΡΡ Π·Π°Π·ΠΎΡΡ ΠΌΠ΅ΠΆΠ΄Ρ ΠΏΠΎΠΊΡΡΡΠΈΠ΅ΠΌ ΠΈ ΡΡΠ΅Π½ΠΎΠΉ, ΠΊΠ°ΠΊ ΠΌΠΈΠ½ΠΈΠΌΡΠΌ, 8-10 ΠΌΠΌ;
- ΠΡΠ΅Π½Π΅Π±ΡΠ΅Π³Π°ΡΡ ΠΏΠΎΡΠΎΠΆΠΊΠ°ΠΌΠΈ Π½Π° ΡΡΡΠΊΠ°Ρ ΡΠ°ΠΊΠΆΠ΅ Π½Π΅ ΡΡΠΎΠΈΡ β ΠΎΠ½ΠΈ ΠΎΠ±Π΅ΡΠΏΠ΅ΡΠΈΠ²Π°ΡΡ ΠΏΡΠ°ΠΊΡΠΈΡΠ½ΡΡ ΡΠΊΡΠΏΠ»ΡΠ°ΡΠ°ΡΠΈΡ ΠΏΠΎΠ»Π° ΠΈ Π½Π΅ Π΄Π΅ΡΠΎΡΠΌΠΈΡΡΡΡ ΡΠ°ΠΌ ΠΌΠ°ΡΠ΅ΡΠΈΠ°Π»;
- ΠΠ΅ ΠΈΡΠΏΠΎΠ»ΡΠ·ΡΠΉΡΠ΅ ΠΊΠ»Π΅ΠΉ ΠΈΠ»ΠΈ ΡΠ°ΠΌΠΎΡΠ΅Π·Ρ Π΄Π»Ρ ΡΠΈΠΊΡΠ°ΡΠΈΠΈ ΠΏΠΎΠ»Π°, Π° ΡΠ°ΠΊΠΆΠ΅, Π½Π΅ ΠΊΡΠ΅ΠΏΠΈΡΠ΅ ΠΏΠ»ΠΈΠ½ΡΡΡ ΠΊ Π»Π°ΠΌΠΈΠ½Π°ΡΡ;
- ΠΠ΅ ΡΠΊΠ»Π°Π΄ΡΠ²Π°ΠΉΡΠ΅ ΠΏΠΎΠΊΡΡΡΠΈΠ΅ ΡΡΠ°Π·Ρ ΠΏΠΎΡΠ»Π΅ ΠΏΠΎΠΊΡΠΏΠΊΠΈ, Π΄Π°ΠΉΡΠ΅ ΠΌΠ°ΡΠ΅ΡΠΈΠ°Π»Ρ ΠΏΠΎΠ»Π΅ΠΆΠ°ΡΡ 2-3 Π΄Π½Ρ ΠΈ ΠΏΡΠΈΠ½ΡΡΡ ΠΊΠΎΠΌΠ½Π°ΡΠ½ΡΡ ΡΠ΅ΠΌΠΏΠ΅ΡΠ°ΡΡΡΡ;
ΠΡΠ°Π²ΠΈΠ»ΡΠ½ΡΠ΅ Π·Π°Π·ΠΎΡΡ ΠΌΠ΅ΠΆΠ΄Ρ Π»Π°ΠΌΠΈΠ½Π°ΡΠΎΠΌ ΠΈ ΡΡΠ΅Π½ΠΎΠΉ
ΠΡΠΈΠ±ΠΊΠ° 2 — Π²Ρ Π½Π΅ ΠΏΠΎΠ΄Π³ΠΎΡΠΎΠ²ΠΈΠ»ΠΈ ΠΏΠΎΠ» ΠΏΠΎΠ΄ ΠΏΠΎΠΊΡΡΡΠΈΠ΅
ΠΡΠΈ ΡΠΊΠ»Π°Π΄ΠΊΠ΅ Π»Π°ΠΌΠΈΠ½Π°ΡΠ° ΠΏΠΎΠΌΠ½ΠΈΡΠ΅, ΡΡΠΎ ΠΏΠΎΠΊΡΡΡΠΈΠ΅ Π½Π΅ ΡΠ΅ΡΠΏΠΈΡ Π½Π΅ΡΠΎΠ²Π½ΠΎΡΡΠ΅ΠΉ, Π³ΡΡΠ·ΠΈ ΠΈ Π²Π»Π°Π³ΠΈ.
ΠΠΎΡ ΠΏΠΎΠ»Π΅Π·Π½ΡΠ΅ ΡΠΎΠ²Π΅ΡΡ ΠΎΡ Π½Π°ΡΠ΅Π³ΠΎ ΡΠΊΡΠΏΠ΅ΡΡΠ°:
- ΠΡΠΈΡΡΠΈΡΠ΅ ΠΏΠΎΠ» ΠΏΠ΅ΡΠ΅Π΄ ΡΠΊΠ»Π°Π΄ΠΊΠΎΠΉ ΠΎΡ ΠΏΡΠ»ΠΈ, ΠΊΠ°ΠΌΠ½Π΅ΠΉ, Π±Π΅ΡΠΎΠ½Π½ΠΎΠΉ ΠΊΡΠΎΡΠΊΠΈ;
- ΠΠ°ΠΉΡΠ΅ ΠΏΠΎΠ»Ρ Ρ ΠΎΡΠΎΡΠ΅Π½ΡΠΊΠΎ ΠΏΡΠΎΡΠΎΡ Π½ΡΡΡ ΠΏΠΎΡΠ»Π΅ ΠΏΠΎΠΌΡΠ²ΠΊΠΈ, ΡΡΠΎΠ±Ρ ΠΈΠ·Π±Π΅ΠΆΠ°ΡΡ ΠΌΠ°Π»Π΅ΠΉΡΠ΅Π³ΠΎ ΡΠ°Π·Π±ΡΡ Π°Π½ΠΈΡ ΠΏΠΎΠΊΡΡΡΠΈΡ;
ΠΡΠΈΠΌΠ΅Ρ ΠΏΡΠ°Π²ΠΈΠ»ΡΠ½ΠΎ ΠΏΠΎΠ΄Π³ΠΎΡΠΎΠ²Π»Π΅Π½Π½ΠΎΠ³ΠΎ Π΄Π»Ρ ΡΠΊΠ»Π°Π΄ΠΊΠΈ Π»Π°ΠΌΠΈΠ½Π°ΡΠ° ΠΏΠΎΠ»Π°
ΠΡΠΈΠ±ΠΊΠ° 3 — Π²Ρ Π½Π΅ ΡΠ΄Π΅Π»Π°Π»ΠΈ ΠΏΠΎΠ΄Π»ΠΎΠΆΠΊΡ
ΠΠ½ΠΎΠ³ΠΈΠ΅ Π·Π°Π±ΡΠ²Π°ΡΡ ΡΠ΄Π΅Π»Π°ΡΡ ΠΏΠΎΠ΄Π»ΠΎΠΆΠΊΡ ΠΏΠΎΠ΄ ΠΏΠΎΠΊΡΡΡΠΈΠ΅, ΠΈΠ·-Π·Π° ΡΠ΅Π³ΠΎ ΠΏΠΎΡΠ²Π»ΡΡΡΡΡ ΠΏΠΎΡΠΊΡΠΈΠΏΡΠ²Π°Π½ΠΈΡ ΠΈ ΠΏΠΎΡΡΡΠΊΠΈΠ²Π°Π½ΠΈΡ ΠΏΡΠΈ Ρ ΠΎΠ΄ΡΠ±Π΅. Π§ΡΠΎ ΠΆΠ΅ Π³ΠΎΠ²ΠΎΡΠΈΡΡ ΠΈ ΠΎ ΡΠΎΠΌ, ΡΡΠΎ ΠΏΠΎΠΊΡΡΡΠΈΠ΅ Π±ΡΡΡΡΠ΅Π΅ ΠΈΠ·Π½Π°ΡΠΈΠ²Π°Π΅ΡΡΡ ΠΏΡΠΈ Π΄Π²ΠΈΠΆΠ΅Π½ΠΈΠΈ Π·Π°ΠΌΠΊΠΎΠ². ΠΠΎΠ΄Π»ΠΎΠΆΠΊΡ ΠΌΠΎΠΆΠ½ΠΎ Π²ΡΠ±ΡΠ°ΡΡ ΠΈΠ· ΡΠ°ΠΌΡΡ ΡΠ°Π·Π½ΡΡ ΠΌΠ°ΡΠ΅ΡΠΈΠ°Π»ΠΎΠ². ΠΠ°Ρ ΡΠΊΡΠΏΠ΅ΡΡ ΡΠ΅ΠΊΠΎΠΌΠ΅Π½Π΄ΡΠ΅Ρ ΠΏΡΠΎΠ±ΠΊΠΎΠ²ΡΡ ΠΏΠΎΠ΄Π»ΠΎΠΆΠΊΡ. ΠΠ½Π° ΡΠΎΠ·Π΄Π°Π΅Ρ Π΄ΠΎΠΏΠΎΠ»Π½ΠΈΡΠ΅Π»ΡΠ½ΡΡ Π·Π²ΡΠΊΠΎ- ΠΈ ΡΠ΅ΠΏΠ»ΠΎΠΈΠ·ΠΎΠ»ΡΡΠΈΡ, Π΄Π° ΠΈ ΡΠ°ΠΌ ΠΌΠ°ΡΠ΅ΡΠΈΠ°Π» Π±ΠΎΠ»Π΅Π΅ ΡΠΊΠΎΠ»ΠΎΠ³ΠΈΡΠ½ΡΠΉ.
ΠΠΎΠ΄Π»ΠΎΠΆΠΊΠ° ΠΏΠΎΠ΄ Π»Π°ΠΌΠΈΠ½Π°ΡΠΠΎΠ΄Π»ΠΎΠΆΠΊΠ° ΠΏΠΎΠ΄ Π»Π°ΠΌΠΈΠ½Π°Ρ
ΠΡΠΈΠ±ΠΊΠ° 4 — Π²Ρ ΡΠ΄Π΅Π»Π°Π»ΠΈ Β«ΡΠ΅ΠΏΠ»ΡΠΉ ΠΏΠΎΠ»Β» ΠΏΠΎΠ΄ Π»Π°ΠΌΠΈΠ½Π°ΡΠΎΠΌ
Π’Π°ΠΊΠ°Ρ ΠΎΡΠΈΠ±ΠΊΠ°, Π² Π½Π΅ΠΊΠΎΡΠΎΡΡΡ
ΡΠ»ΡΡΠ°ΡΡ
, ΠΌΠΎΠΆΠ΅Ρ Π±ΡΡΡ ΠΎΠΏΠ°ΡΠ½Π° Π΄Π»Ρ Π·Π΄ΠΎΡΠΎΠ²ΡΡ Π΄ΠΎΠΌΠΎΡΠ°Π΄ΡΠ΅Π²! ΠΠ°Ρ ΡΠΊΡΠΏΠ΅ΡΡ ΡΠΎΠ²Π΅ΡΡΠ΅Ρ Π½Π΅ ΡΠΊΠ»Π°Π΄ΡΠ²Π°ΡΡ ΠΏΠΎΠ΄ Π»Π°ΠΌΠΈΠ½Π°Ρ Β«ΡΠ΅ΠΏΠ»ΡΠΉ ΠΏΠΎΠ»Β».
ΠΡΠΎ ΡΠ²ΡΠ·Π°Π½ΠΎ Ρ ΠΎΠΏΠ°ΡΠ½ΠΎΡΡΡΡ Π²ΡΠ΄Π΅Π»Π΅Π½ΠΈΡ Π²ΡΠ΅Π΄Π½ΡΡ
Π²Π΅ΡΠ΅ΡΡΠ² ΠΏΡΠΈ Π½Π°Π³ΡΠ΅Π²Π°Π½ΠΈΠΈ ΠΌΠ°ΡΠ΅ΡΠΈΠ°Π»Π°. ΠΠΎΠ΄ΠΎΠ±Π½Π°Ρ ΠΎΡΠΈΠ±ΠΊΠ° ΡΠ»ΡΡΠ°Π΅ΡΡΡ ΡΠ΅Π΄ΠΊΠΎ, Π½ΠΎ Π½ΠΈΠΊΡΠΎ Π½Π΅ Π·Π°ΡΡΡΠ°Ρ
ΠΎΠ²Π°Π½ ΠΎΡ Π½Π΅ΠΊΠ°ΡΠ΅ΡΡΠ²Π΅Π½Π½ΠΎΠ³ΠΎ ΠΌΠ°ΡΠ΅ΡΠΈΠ°Π»Π° Π½Π°ΠΏΠΎΠ»ΡΠ½ΠΎΠ³ΠΎ ΠΏΠΎΠΊΡΡΡΠΈΡ. ΠΡΡΡΠ΅, ΠΊΠΎΠ³Π΄Π° Π²Ρ ΡΡΠ»ΠΈ ΡΡΠΎΡ ΡΠ°ΠΊΡΠΎΡ ΠΈ ΠΏΡΠ΅Π΄ΠΎΡΡΠ΅ΡΠ΅Π³Π»ΠΈ ΡΠ΅Π±Ρ ΠΎΡ Π²ΡΠ΅Π΄Π°.
ΠΠ°ΠΌΠΈΠ½Π°Ρ ΡΠ»ΠΎΠΆΠ΅Π½Π½ΡΠΉ ΠΏΠΎ ΠΏΡΠ°Π²ΠΈΠ»ΡΠ½ΠΎΠΉ ΡΠ΅Ρ Π½ΠΎΠ»ΠΎΠ³ΠΈΠΈ
ΠΡΠΈΠ±ΠΊΠ° 5 — Π½Π΅ΠΏΡΠ°Π²ΠΈΠ»ΡΠ½ΡΠΉ ΡΠΈΡΡΠ½ΠΎΠΊ ΠΏΠΎΠ»Π°
ΠΠΎΡΠ»Π΅Π΄Π½ΡΡ ΠΏΠΎ ΠΎΡΠ΅ΡΠ΅Π΄ΠΈ, Π½ΠΎ Π½Π΅ ΠΏΠΎ Π²Π°ΠΆΠ½ΠΎΡΡΠΈ ΠΎΡΠΈΠ±ΠΊΠ° β ΡΡΠΎ Π½Π΅ΠΏΡΠ°Π²ΠΈΠ»ΡΠ½ΠΎΠ΅ ΠΎΡΠΈΠ΅Π½ΡΠΈΡΠΎΠ²Π°Π½ΠΈΠ΅ ΡΠΈΡΡΠ½ΠΊΠ° Π»Π°ΠΌΠΈΠ½Π°ΡΠ°. Π Π°Π·ΡΠΌΠ΅Π΅ΡΡΡ, ΡΡΠ° Π²ΠΎΠΏΡΠΎΡ ΡΠΊΠΎΡΠ΅Π΅ ΡΡΡΠ΅ΡΠΈΡΠ΅ΡΠΊΠΎΠ³ΠΎ Ρ Π°ΡΠ°ΠΊΡΠ΅ΡΠ°, Π½ΠΎ ΠΎΠ½ Π²ΡΠ΅ ΠΆΠ΅ ΠΌΠΎΠΆΠ΅Ρ Π²ΡΡΠ°ΡΡ ΠΎΡΡΡΠΎ ΡΠΏΡΡΡΡ ΠΊΠ°ΠΊΠΎΠ΅-ΡΠΎ Π²ΡΠ΅ΠΌΡ. Π§ΡΠΎ Π²Π°ΠΆΠ½ΠΎ ΡΡΠ΅ΡΡΡ?
- ΠΠ³ΡΠ° ΡΠ²Π΅ΡΠ° ΠΈ ΡΠ΅Π½ΠΈ Π²Π°Ρ Ρ ΠΎΡΠΎΡΠΈΠΉ Π΄ΡΡΠ³. Π£ΠΊΠ»Π°Π΄ΡΠ²Π°ΠΉΡΠ΅ Π΄ΠΎΡΠΊΠΈ Π»Π°ΠΌΠΈΠ½Π°ΡΠ° ΡΠ°ΠΊ, ΡΡΠΎΠ±Ρ Π΄Π»ΠΈΠ½Π½ΡΠ΅ ΡΡΡΠΊΠΈ ΡΠΌΠΎΡΡΠ΅Π»ΠΈ ΠΏΠ΅ΡΠΏΠ΅Π½Π΄ΠΈΠΊΡΠ»ΡΡΠ½ΠΎ ΠΊ ΠΎΠΊΠ½Ρ. ΠΡΠΎΡΠ΅ Π³ΠΎΠ²ΠΎΡΡ, Π΄Π»ΠΈΠ½Π° Π΄ΠΎΡΠΎΠΊ Π΄ΠΎΠ»ΠΆΠ½Π° ΠΏΡΠΎΠΊΠ»Π°Π΄ΡΠ²Π°ΡΡΡΡ ΠΎΡ ΡΠ²Π΅ΡΠ°;
- ΠΡΠ»ΠΈ ΠΊΠΎΠΌΠ½Π°ΡΠ° Π½Π΅ΠΏΡΠ°Π²ΠΈΠ»ΡΠ½ΠΎΠΉ ΡΠΎΡΠΌΡ ΠΈΠ»ΠΈ ΠΎΠΊΠ½ΠΎ Π½Π΅ ΡΠΎΡΠ½ΠΎ Π½Π°ΠΏΡΠΎΡΠΈΠ² Π²Ρ ΠΎΠ΄Π°, Π½Π΅ Π±ΠΎΠΉΡΠ΅ΡΡ ΡΠΊΠ»Π°Π΄ΡΠ²Π°ΡΡ ΠΏΠΎΠΊΡΡΡΠΈΠ΅ Π½Π°ΠΈΡΠΊΠΎΡΠΎΠΊ, ΡΠΎΠ³Π»Π°ΡΠ½ΠΎ ΠΎΠ±ΡΠ΅ΠΌΡ ΠΏΡΠ°Π²ΠΈΠ»Ρ;
ΠΡΠ°Π²ΠΈΠ»ΡΠ½Π°Ρ ΡΠΊΠ»Π°Π΄ΠΊΠ° Π»Π°ΠΌΠΈΠ½Π°ΡΠ° ΠΎΡ ΠΎΠΊΠ½Π°
ΠΡ ΡΠ°Π·ΠΎΠ±ΡΠ°Π»ΠΈ 5 ΡΠ°ΠΌΡΡ
ΡΠ°ΡΠΏΡΠΎΡΡΡΠ°Π½Π΅Π½Π½ΡΡ
ΠΎΡΠΈΠ±ΠΎΠΊ ΠΏΡΠΈ ΡΠΊΠ»Π°Π΄ΠΊΠ΅ Π»Π°ΠΌΠΈΠ½Π°ΡΠ°.
ΠΡΠ»ΠΈ Π²Ρ ΡΡΡΠ΅ΡΠ΅ ΠΊΠ°ΠΆΠ΄ΡΡ ΠΈΠ· Π½ΠΈΡ
, Π²Π°ΡΠ΅ Π½Π°ΠΏΠΎΠ»ΡΠ½ΠΎΠ΅ ΠΏΠΎΠΊΡΡΡΠΈΠ΅ ΠΏΡΠΎΡΠ»ΡΠΆΠΈΡ Π²Π°ΠΌ Π΄ΠΎΠ»Π³ΠΎ.
Π§ΠΈΡΠ°ΠΉΡΠ΅ Π΅ΡΠ΅ Π½Π°ΡΠΈ ΡΡΠ°ΡΡΠΈ
ΠΡΠΆΠ½Ρ Π»ΠΈ ΡΠΎΠ·Π΅ΡΠΊΠΈ Π² ΠΎΠΊΠΎΠ½Π½ΡΡ
ΠΎΡΠΊΠΎΡΠ°Ρ
?
ΠΠ°ΠΉΡΡ
Π°ΠΊΠΈ: ΠΊΠ°ΠΊ ΡΠΏΠ»Π°Π½ΠΈΡΠΎΠ²Π°ΡΡ Π³Π°ΡΠ΄Π΅ΡΠΎΠ±Π½ΡΡ ΠΊΠΎΠΌΠ½Π°ΡΡ
ΠΠ±ΠΎΠΈ ΠΏΠΎΠ΄ ΠΏΠΎΠΊΡΠ°ΡΠΊΡ: ΡΠ»ΠΈΠ·Π΅Π»ΠΈΠ½ ΠΈΠ»ΠΈ ΡΡΠ΅ΠΊΠ»ΠΎΡ
ΠΎΠ»ΡΡ?
ΠΠΎΠ΄ΡΠ½ΠΎΠΉ ΠΈΠ»ΠΈ ΡΠ»Π΅ΠΊΡΡΠΈΡΠ΅ΡΠΊΠΈΠΉ ΠΏΠΎΠ»ΠΎΡΠ΅Π½ΡΠ΅ΡΡΡΠΈΡΠ΅Π»Ρ: ΠΊΠ°ΠΊΠΎΠΉ Π»ΡΡΡΠ΅?
Π Π΅ΠΌΠΎΠ½Ρ ΠΏΠΎΠ²ΡΠ΅ΠΆΠ΄Π΅Π½Π½ΠΎΠ³ΠΎ Π»Π°ΠΌΠΈΠ½ΠΈΡΠΎΠ²Π°Π½Π½ΠΎΠ³ΠΎ ΠΏΠΎΠ»Π°
ΠΠ°ΠΌΠΈΠ½Π°Ρ ΡΠ²Π»ΡΠ΅ΡΡΡ ΠΎΠ΄Π½ΠΈΠΌ ΠΈΠ· ΡΠ°ΠΌΡΠ΅ ΠΏΡΠΎΡΠ½ΡΠ΅ ΠΈ Π΄ΠΎΠ»Π³ΠΎΠ²Π΅ΡΠ½ΡΠ΅ Π½Π°ΠΏΠΎΠ»ΡΠ½ΡΠ΅ ΠΏΠΎΠΊΡΡΡΠΈΡ Π΄Π»Ρ Π»ΡΠ±ΠΎΠ³ΠΎ ΠΏΠΎΠΌΠ΅ΡΠ΅Π½ΠΈΡ Π² Π²Π°ΡΠ΅ΠΌ Π΄ΠΎΠΌΠ΅. ΠΡ ΠΈΠ· ΠΊΡΡ Π½ΠΈ Π² Π³ΠΎΡΡΠΈΠ½ΡΡ, ΠΊΠ°Π±ΠΈΠ½Π΅Ρ ΠΈΠ»ΠΈ ΡΡΠ°Π»Π΅ΡΠ½ΡΡ ΠΊΠΎΠΌΠ½Π°ΡΡ, Π»Π°ΠΌΠΈΠ½Π°Ρ Π²ΡΠ΄Π΅ΡΠΆΠΈΠ²Π°Π΅Ρ ΠΏΠΎΠ²ΡΠ΅Π΄Π½Π΅Π²Π½ΡΠΉ ΠΈΠ·Π½ΠΎΡ Ρ Π»Π΅Π³ΠΊΠΎΡΡΡΡ. ΠΠ°ΠΌΠΈΠ½Π°Ρ ΠΈΡΠΏΠΎΠ»ΡΠ·ΡΠ΅ΡΡΡ Π΄Π°ΠΆΠ΅ Π² ΠΊΠΎΠΌΠΌΠ΅ΡΡΠ΅ΡΠΊΠΈΡ ΡΠ΅Π»ΡΡ . ΠΏΡΠΎΡΡΡΠ°Π½ΡΡΠ²Π° ΠΏΠΎ ΡΡΠΎΠΉ ΠΏΡΠΈΡΠΈΠ½Π΅.
ΠΠ΄Π½Π°ΠΊΠΎ ΡΠΎ Π²ΡΠ΅ΠΌΠ΅Π½Π΅ΠΌ Π΄Π°ΠΆΠ΅ ΠΏΡΠΎΡΠ½ΡΠΉ Π»Π°ΠΌΠΈΠ½Π°Ρ ΠΌΠΎΠΆΠ΅Ρ Π½Π°ΡΠ°ΡΡ ΠΈΠ·Π½Π°ΡΠΈΠ²Π°ΡΡΡΡ.Π Π½Π΅ΠΊΠΎΡΠΎΡΡΡ
ΡΠ»ΡΡΠ°ΡΡ
ΡΡΠΎ ΠΏΡΠΎΠΈΡΡ
ΠΎΠ΄ΠΈΡ ΠΈΠ·-Π·Π° ΡΠ»ΠΎΠΆΠ½ΡΡ
ΡΡΠ»ΠΎΠ²ΠΈΠΉ, ΡΠ°ΠΊΠΈΡ
ΠΊΠ°ΠΊ ΠΏΠΎΠΌΠ΅ΡΠ΅Π½ΠΈΠ΅ Ρ ΠΏΠΎΠ²ΡΡΠ΅Π½Π½ΠΎΠΉ Π²Π»Π°ΠΆΠ½ΠΎΡΡΡΡ, Π²ΠΎΠ·Π΄Π΅ΠΉΡΡΠ²ΠΈΠ΅ ΡΠ΅ΠΏΠ»Π° ΠΈΠ»ΠΈ Π½Π΅ΠΏΡΠ°Π²ΠΈΠ»ΡΠ½Π°Ρ ΡΡΡΠ°Π½ΠΎΠ²ΠΊΠ°. Π₯ΠΎΡΠΎΡΠ΅ΠΉ Π½ΠΎΠ²ΠΎΡΡΡΡ ΡΠ²Π»ΡΠ΅ΡΡΡ ΡΠΎ, ΡΡΠΎ ΠΈΡΠΏΡΠ°Π²Π»Π΅Π½ΠΈΠ΅ ΠΏΠΎΡΡΠΈ Π²ΡΠ΅Π³Π΄Π° Π²ΠΎΠ·ΠΌΠΎΠΆΠ½ΠΎ.
ΠΡΠΏΠΎΠ»ΡΠ·ΡΠΉΡΠ΅ ΡΡΠΎ ΡΡΠΊΠΎΠ²ΠΎΠ΄ΡΡΠ²ΠΎ, ΡΡΠΎΠ±Ρ ΡΠ·Π½Π°ΡΡ Π±ΠΎΠ»ΡΡΠ΅ ΠΎ ΡΠΎΠΌ, ΠΊΠ°ΠΊ ΠΎΡΡΠ΅ΠΌΠΎΠ½ΡΠΈΡΠΎΠ²Π°ΡΡ ΠΏΠΎΠ²ΡΠ΅ΠΆΠ΄Π΅Π½Π½ΡΠΉ Π»Π°ΠΌΠΈΠ½ΠΈΡΠΎΠ²Π°Π½Π½ΡΠΉ ΠΏΠΎΠ».
Π£ΡΡΡΠ°Π½Π΅Π½ΠΈΠ΅ ΡΠ°ΡΠ°ΠΏΠΈΠ½ ΠΈ ΠΏΠΎΠ²ΡΠ΅ΠΆΠ΄Π΅Π½ΠΈΠΉ ΠΎΡΠ΄Π΅Π»ΠΊΠΈ
ΠΠΎΠ» ΠΈΠ· Π»Π°ΠΌΠΈΠ½Π°ΡΠ° ΠΠ·Π²Π΅ΡΡΠ½ΠΎ, ΡΡΠΎ ΠΎΠ½ Π΄ΠΎΡΡΠ°ΡΠΎΡΠ½ΠΎ ΠΏΡΠΎΡΠ΅Π½ Π΄Π°ΠΆΠ΅ Π΄Π»Ρ ΡΠ°ΠΌΡΡ ΠΎΠΆΠΈΠ²Π»Π΅Π½Π½ΡΡ ΠΆΠΈΠ»ΡΡ ΠΈ ΠΊΠΎΠΌΠΌΠ΅ΡΡΠ΅ΡΠΊΠΈΠ΅ ΠΏΠΎΠΌΠ΅ΡΠ΅Π½ΠΈΡ. Π¦Π°ΡΠ°ΠΏΠΈΠ½Ρ ΠΈ ΠΏΠΎΠ²ΡΠ΅ΠΆΠ΄Π΅Π½ΠΈΡ ΠΎΡΠ΄Π΅Π»ΠΊΠΈ Π²ΡΠ΅ Π΅ΡΠ΅ ΠΌΠΎΠ³ΡΡ Π²ΠΎΠ·Π½ΠΈΠΊΠ°ΡΡ, Π΄Π°ΠΆΠ΅ Π΅ΡΠ»ΠΈ Π²Ρ ΠΌΠ°ΡΠ΅ΡΠΈΠ°Π» Π΄Π»Ρ ΠΏΠΎΠ»Π° ΠΈΠ· Π»Π°ΠΌΠΈΠ½Π°ΡΠ° ΠΈΠΌΠ΅Π΅Ρ ΠΎΡΠ΅Π½Ρ Π²ΡΡΠΎΠΊΠΈΠΉ ΠΊΠ»Π°ΡΡ ΠΈΡΡΠΈΡΠ°Π΅ΠΌΠΎΡΡΠΈ ΡΠ΅ΠΉΡΠΈΠ½Π³.Π ΠΊΠΎΠ½ΡΠ΅ ΠΊΠΎΠ½ΡΠΎΠ², Π΅ΡΡΡ ΡΠΎΠ»ΡΠΊΠΎ ΡΠ°ΠΊ ΠΌΠ½ΠΎΠ³ΠΎ Π·Π»ΠΎΡΠΏΠΎΡΡΠ΅Π±Π»Π΅Π½ΠΈΠΉ, Π΄Π°ΠΆΠ΅ ΡΠ°ΠΌΡΡ ΠΆΠ΅ΡΡΠΊΠΈΡ ΠΌΠ°ΡΠ΅ΡΠΈΠ°Π»Ρ ΠΌΠΎΠ³ΡΡ ΡΠΏΡΠ°Π²ΠΈΡΡΡΡ.
Π Π±ΠΎΠ»ΡΡΠΈΠ½ΡΡΠ²Π΅ ΡΠ»ΡΡΠ°Π΅Π² ΡΠ°ΡΠ°ΠΏΠΈΠ½Ρ, ΠΏΠΎΡΠ΅ΡΡΠΎΡΡΠΈ ΠΈ ΠΏΠΎΠ²ΡΠ΅ΠΆΠ΄Π΅Π½ΠΈΡ ΠΎΡΠ΄Π΅Π»ΠΊΠΈ ΠΌΠΎΠ³ΡΡ Π±ΡΡΡ ΠΎΡΡΠ΅ΠΌΠΎΠ½ΡΠΈΡΠΎΠ²Π°Π½Ρ ΠΎΡΠ½ΠΎΡΠΈΡΠ΅Π»ΡΠ½ΠΎ Π»Π΅Π³ΠΊΠΎ. Π ΠΏΡΠΎΡΡΠΎΠΉ ΠΊΠΎΠΌΠΏΠ»Π΅ΠΊΡ Π΄Π»Ρ ΡΠ΅ΠΌΠΎΠ½ΡΠ° Π»Π°ΠΌΠΈΠ½Π°ΡΠ°, ΠΊΠΎΡΠΎΡΡΠΉ Π²Ρ ΠΌΠΎΠΆΠ΅ΡΠ΅ ΠΏΠΎΠ»ΡΡΠΈΡΡ Π² ΠΠ½ΡΠ΅ΡΠ½Π΅ΡΠ΅ ΠΈΠ»ΠΈ Π²ΠΎ ΠΌΠ½ΠΎΠ³ΠΈΡ Ρ ΠΎΠ·ΡΠΉΡΡΠ²Π΅Π½Π½ΡΡ ΠΌΠ°Π³Π°Π·ΠΈΠ½Π°Ρ , ΡΡΠΎ ΠΏΠΎΡΡΠΈ Π²ΡΠ΅, ΡΡΠΎ Π²Π°ΠΌ Π½ΡΠΆΠ½ΠΎ. ΠΠΎΡ ΠΊΠ°ΠΊ ΠΈΡΠΏΠΎΠ»ΡΠ·ΠΎΠ²Π°ΡΡ ΠΎΠ΄ΠΈΠ½ ΡΡΡΠ΅ΠΊΡΠΈΠ²Π½ΠΎ:
Π¨Π°Π³ 1:
ΠΠ°ΠΉΡΠΈ ΡΠ΅ΠΌΠΎΠ½ΡΠ½ΡΠΉ ΠΊΠΎΠΌΠΏΠ»Π΅ΠΊΡ
ΠΊΠΎΡΠΎΡΡΠΉ Π±ΠΎΠ»ΡΡΠ΅ Π²ΡΠ΅Π³ΠΎ Π½Π°ΠΏΠΎΠΌΠΈΠ½Π°Π΅Ρ Π²Π½Π΅ΡΠ½ΠΈΠΉ Π²ΠΈΠ΄ Π²Π°ΡΠΈΡ
Π»Π°ΠΌΠΈΠ½ΠΈΡΠΎΠ²Π°Π½Π½ΡΡ
ΠΏΠΎΠ»ΠΎΠ². ΠΡΠ»ΠΈ ΡΡ
Π΄Π΅Π»Π°ΡΡ ΠΏΠΎΠΊΡΠΏΠΊΠΈ Π»ΠΈΡΠ½ΠΎ, ΠΏΠΎΠ΄ΡΠΌΠ°ΠΉΡΠ΅ ΠΎ ΡΠΎΠΌ, ΡΡΠΎΠ±Ρ Π²Π·ΡΡΡ Ρ ΡΠΎΠ±ΠΎΠΉ Π΄ΠΎΠΏΠΎΠ»Π½ΠΈΡΠ΅Π»ΡΠ½ΡΠΉ ΠΊΡΡΠΎΠΊ Π»Π°ΠΌΠΈΠ½Π°ΡΠ°, ΠΊΠΎΠ³Π΄Π°
ΠΏΠΎΠΊΡΠΏΠ°Ρ ΡΠ΅ΠΌΠΎΠ½ΡΠ½ΡΠΉ ΠΊΠΎΠΌΠΏΠ»Π΅ΠΊΡ, ΡΡΠΎΠ±Ρ ΠΏΠΎΠ΄ΠΎΠ±ΡΠ°ΡΡ Π΅Π³ΠΎ Π½Π° Π³Π»Π°Π·.
Π¨Π°Π³ 2:
ΠΡΠΎΠ²Π΅ΡΠΊΠ° ΠΌΠ°ΡΠΊΠ΅ΡΠ°, ΠΌΠ΅Π»ΠΎΠΊ ΠΈΠ»ΠΈ ΡΠ²Π΅ΡΠ½Π°Ρ Π·Π°ΠΌΠ°Π·ΠΊΠ°, ΠΊΠΎΡΠΎΡΠ°Ρ ΠΈΠ΄Π΅Ρ Π² ΠΊΠΎΠΌΠΏΠ»Π΅ΠΊΡΠ΅ Ρ ΡΠ΅ΠΌΠΎΠ½ΡΠ½ΡΠΌ ΠΊΠΎΠΌΠΏΠ»Π΅ΠΊΡΠΎΠΌ Π² Π½Π΅Π·Π°ΠΌΠ΅ΡΠ½ΠΎΠΌ ΠΎΠ±Π»Π°ΡΡΡ ΠΏΠ΅ΡΠ²Π°Ρ. Π₯ΠΎΡΡ ΡΠ²Π΅Ρ Π²Π°ΡΠ΅Π³ΠΎ ΡΠ΅ΠΌΠΎΠ½ΡΠ½ΠΎΠ³ΠΎ ΠΊΠΎΠΌΠΏΠ»Π΅ΠΊΡΠ° ΠΌΠΎΠΆΠ΅Ρ ΠΏΠΎΠΊΠ°Π·Π°ΡΡΡΡ ΠΏΡΠ°Π²ΠΈΠ»ΡΠ½ΡΠΌ, Π²Ρ ΠΌΠΎΠΆΠ΅ΡΠ΅ ΠΎΠ±Π½Π°ΡΡΠΆΠΈΡΠ΅, ΡΡΠΎ ΡΡΠΎ Π½Π΅ Π»ΡΡΡΠΈΠΉ Π²Π°ΡΠΈΠ°Π½Ρ, ΠΊΠΎΠ³Π΄Π° Π²Ρ Π΄ΠΎΠΌΠ°. ΠΡΠ»ΠΈ ΡΠ²Π΅Ρ ΠΏΡΠ°Π²ΠΈΠ»ΡΠ½ΡΠΉ, Π²Ρ ΠΌΠΎΠΆΠ½ΠΎ ΠΏΠ΅ΡΠ΅ΠΉΡΠΈ ΠΊ ΡΠ»Π΅Π΄ΡΡΡΠ΅ΠΌΡ ΡΠ°Π³Ρ.
Π¨Π°Π³ 3:
ΠΠΊΠΊΡΡΠ°ΡΠ½ΠΎ ΠΎΡΠΈΡΡΠΈΡΠ΅ ΠΎΠ±Π»Π°ΡΡΡ Π³Π΄Π΅ Π½ΡΠΆΠ½ΠΎ ΡΠ΄Π΅Π»Π°ΡΡ ΡΠ΅ΠΌΠΎΠ½Ρ. ΠΡΠ»Ρ ΠΈ ΠΌΡΡΠΎΡ ΠΌΠΎΠ³ΡΡ ΠΏΠΎΠΌΠ΅ΡΠ°ΡΡ ΠΏΡΠΎΡΠ΅ΡΡΡ ΡΠ΅ΠΌΠΎΠ½ΡΠ°.
Π¨Π°Π³ 4:
ΠΠ°ΠΏΠΎΠ»Π½ΠΈΡΠ΅ ΠΏΠΎΡΠ°ΡΠ°ΠΏΠ°ΡΡ ΠΈΠ»ΠΈ ΠΏΠΎΠ²ΡΠ΅ΠΆΠ΄Π΅Π½Π½ΠΎΠ΅ ΠΌΠ΅ΡΡΠΎ ΠΌΠΎΠΆΠ½ΠΎ Ρ ΠΏΠΎΠΌΠΎΡΡΡ ΠΌΠ°ΡΠΊΠ΅ΡΠ°, ΠΌΠ΅Π»ΠΊΠ° ΠΈΠ»ΠΈ ΡΠ²Π΅ΡΠ½ΠΎΠΉ Π·Π°ΠΌΠ°Π·ΠΊΠΈ.ΠΠ΅ ΠΈΡΠΏΠΎΠ»ΡΠ·ΡΠΉΡΠ΅ Π±ΠΎΠ»ΡΡΠ΅, ΡΠ΅ΠΌ Π²Π°ΠΌ Π½ΡΠΆΠ½ΠΎ, Π΅ΡΠ»ΠΈ Π²Ρ ΡΠ°Π±ΠΎΡΠ°Π΅ΡΠ΅ Ρ ΡΠ²Π΅ΡΠ½ΠΎΠΉ Π·Π°ΠΌΠ°Π·ΠΊΠΎΠΉ. Π’Ρ ΠΌΠΎΠΆΠ΅ΡΡ Π½ΡΠΆΠ½ΠΎ Π΄ΠΎΠ±Π°Π²ΠΈΡΡ ΡΠ²Π΅Ρ ΡΠ»ΠΎΡΠΌΠΈ ΠΈΠ»ΠΈ ΠΏΡΠΎΠΉΡΠΈΡΡ ΠΏΠΎ ΠΏΠΎΡΠ°ΡΠ°ΠΏΠ°Π½Π½ΠΎΠΉ ΠΎΠ±Π»Π°ΡΡΠΈ Π½Π΅ΡΠΊΠΎΠ»ΡΠΊΠΎ ΡΠ°Π·, Π΅ΡΠ»ΠΈ Π²Ρ ΡΠ°Π±ΠΎΡΠ°Π΅ΡΠ΅ ΠΌΠ°ΡΠΊΠ΅ΡΠΎΠΌ ΠΈΠ»ΠΈ ΠΊΠ°ΡΠ°Π½Π΄Π°ΡΠΎΠΌ.
Π¨Π°Π³ 5:
ΠΡΠΏΠΎΠ»ΡΠ·ΡΠΉΡΠ΅ ΠΌΠ΅Π»ΠΊΡΡ Π·Π΅ΡΠ½ΠΈΡΡΠΎΡΡΡ
Π½Π°ΠΆΠ΄Π°ΡΠ½ΠΎΠΉ Π±ΡΠΌΠ°Π³ΠΎΠΉ, Π΅ΡΠ»ΠΈ Π½Π΅ΠΎΠ±Ρ
ΠΎΠ΄ΠΈΠΌΠΎ, ΡΡΠΎΠ±Ρ Π·Π°ΠΏΠΎΠ»Π½Π΅Π½Π½Π°Ρ ΠΎΠ±Π»Π°ΡΡΡ Π±ΡΠ»Π° Π½Π° ΠΎΠ΄Π½ΠΎΠΌ ΡΡΠΎΠ²Π½Π΅ Ρ ΠΎΡΡΠ°Π»ΡΠ½ΠΎΠΉ ΡΠ°ΡΡΡΡ Π²Π°ΡΠ΅Π³ΠΎ
ΡΡΠ°ΠΆΠ΅ΠΉ. Π Π°Π±ΠΎΡΠ°ΠΉΡΠ΅ ΠΎΡΡΠΎΡΠΎΠΆΠ½ΠΎ, ΡΡΠΎΠ±Ρ Π½Π΅ ΠΏΠΎΡΠ°ΡΠ°ΠΏΠ°ΡΡ Π΄ΡΡΠ³ΠΈΠ΅ ΡΠ°ΡΡΠΈ ΠΏΠΎΠ»Π° Π² ΠΏΡΠΎΡΠ΅ΡΡΠ΅ ΡΠΊΡΠΏΠ»ΡΠ°ΡΠ°ΡΠΈΠΈ.
ΠΎΠ±ΡΠ°Π±ΠΎΡΠ°ΡΡ.
Π¨Π°Π³ 6:
ΠΠ΄ΠΈΠ½ ΡΠ°Π· Π²ΡΠΌΡΡΡ ΠΏΠΎΠ»Ρ ΠΎΠ½ΠΈ ΡΠΎΠ²Π½ΡΠ΅, ΠΈ Π²Ρ Π΄ΠΎΠ²ΠΎΠ»ΡΠ½Ρ ΠΎΠ±ΡΠΈΠΌ ΡΠ²Π΅ΡΠΎΠΌ.ΠΠΎΠ΄ΠΏΠΈΡΠΈΡΠ΅ΡΡ Π½Π° Π»ΡΠ±ΠΎΠΉ ΠΈΠ½ΡΡΡΡΠΊΡΠΈΠΈ ΠΏΡΠΎΠΈΠ·Π²ΠΎΠ΄ΠΈΡΠ΅Π»Ρ, Π΅ΡΠ»ΠΈ ΠΎΠ½ΠΈ ΠΏΡΠ΅Π΄ΠΏΠΈΡΡΠ²Π°ΡΡ Π²Π°ΠΌ ΠΈΡΠΏΠΎΠ»ΡΠ·ΠΎΠ²Π°ΡΡ ΠΎΠΏΡΠ΅Π΄Π΅Π»Π΅Π½Π½ΡΠΉ ΡΠΈΠΏ ΠΎΡΠΈΡΡΠΊΠΈ ΠΏΡΠΎΠ΄ΡΠΊΡ, ΠΊΠ°ΠΊ Π°ΡΠ΅ΡΠΎΠ½.
Π¨Π°Π³ 7:
ΠΠ°Π½Π΅ΡΠΈΡΠ΅ Π»Π°ΠΊ Π½Π° ΠΎΡΡΠ΅ΠΌΠΎΠ½ΡΠΈΡΠΎΠ²Π°Π½Π½ΡΠΉ ΡΡΠ°ΡΡΠΎΠΊ, Π΅ΡΠ»ΠΈ ΡΡΠΎ ΠΏΡΠ΅Π΄ΡΡΠΌΠΎΡΡΠ΅Π½ΠΎ ΠΊΠΎΠΌΠΏΠ»Π΅ΠΊΡΠΎΠΌ. ΠΠ±ΡΠ°Π±ΠΎΡΠ°ΡΡ ΠΌΠ΅Π»ΠΊΠΎΠ·Π΅ΡΠ½ΠΈΡΡΠΎΠΉ Π½Π°ΠΆΠ΄Π°ΡΠ½ΠΎΠΉ Π±ΡΠΌΠ°Π³ΠΎΠΉ ΠΏΠΎΡΠ»Π΅ Π²ΡΡΡΡ Π°Π½ΠΈΡ Π»Π°ΠΊΠ°, Π΅ΡΠ»ΠΈ ΡΡΠΎ ΡΠΊΠ°Π·Π°Π½ΠΎ ΠΏΡΠΎΠΈΠ·Π²ΠΎΠ΄ΠΈΡΠ΅Π»Π΅ΠΌ.
Π Π΅ΠΌΠΎΠ½Ρ Π»Π°ΠΌΠΈΠ½ΠΈΡΠΎΠ²Π°Π½Π½ΠΎΠ³ΠΎ ΠΏΠΎΠ»Π°, ΠΏΠΎΠ²ΡΠ΅ΠΆΠ΄Π΅Π½Π½ΠΎΠ³ΠΎ Π²ΠΎΠ΄ΠΎΠΉ
ΠΠΎΠ» ΠΈΠ· Π»Π°ΠΌΠΈΠ½Π°ΡΠ° ΡΠ΄Π΅Π»Π°Π½ΠΎ Π½Π° Π²Π΅ΠΊΠ°, ΠΈ ΠΎΠ΄Π½ΠΎ ΠΈΠ· ΠΎΡΠ½ΠΎΠ²Π½ΡΡ ΠΏΡΠ΅ΠΈΠΌΡΡΠ΅ΡΡΠ² ΠΈΡΠΏΠΎΠ»ΡΠ·ΠΎΠ²Π°Π½ΠΈΡ Π΅Π³ΠΎ Π½Π° ΠΊΡΡ Π½Π΅ ΠΈΠ»ΠΈ ΠΠ°Π½Π½ΠΎΠΉ ΡΠ²Π»ΡΠ΅ΡΡΡ ΡΠΎΡ ΡΠ°ΠΊΡ, ΡΡΠΎ ΠΎΠ½Π° ΡΡΡΠΎΠΉΡΠΈΠ²Π° ΠΊ Π²ΠΎΠ΄Π΅.ΠΡΠΎ Π½Π΅ Π·Π½Π°ΡΠΈΡ, ΡΡΠΎ ΡΡΠΎ Ρ ΠΎΡΡ ΠΈ Π²ΠΎΠ΄ΠΎΠ½Π΅ΠΏΡΠΎΠ½ΠΈΡΠ°Π΅ΠΌΡΠΉ. ΠΡΠ»ΠΈ Π²ΠΎΠ΄Π° ΠΎΡΡΠ°Π½Π΅ΡΡΡ Π½Π° Π»Π°ΠΌΠΈΠ½ΠΈΡΠΎΠ²Π°Π½Π½ΠΎΠΌ ΠΏΠΎΠ»Ρ ΠΈΠ»ΠΈ ΠΏΠΎΠ²ΡΠ΅Π΄ΠΈΡ ΠΈΠ· ΠΏΡΠΎΡΠ΅ΠΊΠ°ΡΡΠ΅ΠΉ ΡΡΡΠ±Ρ ΠΏΠΎΠ΄ Π²Π°ΡΠΈΠΌΠΈ Π»Π°ΠΌΠΈΠ½Π°ΡΠ½ΡΠΌΠΈ Π΄ΠΎΡΠΊΠ°ΠΌΠΈ, Π²Ρ, Π²Π΅ΡΠΎΡΡΠ½ΠΎ, ΠΈΡΠ΅ΡΠ΅ ΠΏΡΠΈ Π·Π°ΠΌΠ΅Π½Π΅ Ρ ΠΎΡΡ Π±Ρ ΡΠ°ΡΡΠΈ Π²Π°ΡΠΈΡ ΠΏΠΎΠ»ΠΎΠ².
Π₯ΠΎΡΠΎΡΠ°Ρ Π½ΠΎΠ²ΠΎΡΡΡ Π·Π°ΠΊΠ»ΡΡΠ°Π΅ΡΡΡ Π² ΡΠΎΠΌ, ΡΡΠΎ
Π·Π°ΠΌΠ΅Π½Π° ΡΠ°ΡΡΠΈ ΠΏΠΎΠ²ΡΠ΅ΠΆΠ΄Π΅Π½Π½ΠΎΠ³ΠΎ Π»Π°ΠΌΠΈΠ½Π°ΡΠ° Π½Π΅ Π΄ΠΎΠ»ΠΆΠ½Π° Π±ΡΡΡ ΡΠ»ΠΎΠΆΠ½ΠΎΠΉ Π·Π°Π΄Π°ΡΠ΅ΠΉ
ΠΏΡΠΎΡΠ΅Π΄ΡΡΠ°.
ΠΠΎΡ ΠΏΠΎΡΠ°Π³ΠΎΠ²ΠΎΠ΅ ΡΡΠΊΠΎΠ²ΠΎΠ΄ΡΡΠ²ΠΎ, ΠΊΠΎΡΠΎΡΠΎΠ΅ ΠΏΠΎΠΌΠΎΠΆΠ΅Ρ Π²Π°ΠΌ ΠΎΡΡΠ΅ΠΌΠΎΠ½ΡΠΈΡΠΎΠ²Π°ΡΡ ΠΏΠΎΠ»Ρ ΠΏΠΎΡΠ»Π΅ ΠΏΠΎΠ²ΡΠ΅ΠΆΠ΄Π΅Π½ΠΈΡ Π²ΠΎΠ΄ΠΎΠΉ.
ΠΏΡΠΎΠΈΠ·ΠΎΡΠ»ΠΎ:
Π¨Π°Π³ 1:
ΠΠ°ΠΉΠ΄ΠΈΡΠ΅ ΡΡΠ΅Π½Ρ Π±Π»ΠΈΠΆΠ°ΠΉΡΠΈΠΉ ΠΊ ΠΏΠΎΠ²ΡΠ΅ΠΆΠ΄Π΅Π½Π½ΠΎΠΉ Π΄ΠΎΡΠΊΠ΅ ΠΈΠ»ΠΈ Π΄ΠΎΡΠΊΠ°ΠΌ.Π‘Π½ΠΈΠΌΠΈΡΠ΅ ΠΌΠΎΠ»Π΄ΠΈΠ½Π³ Π·Π΄Π΅ΡΡ. ΠΡΠΎ Π΄Π°ΡΡ Π²Ρ ΠΏΠΎΠ»ΡΡΠ°Π΅ΡΠ΅ Π΄ΠΎΡΡΡΠΏ ΠΊ Π»ΡΠ±ΡΠΌ Π΄ΠΎΡΠΊΠ°ΠΌ, Π²Π΅Π΄ΡΡΠΈΠΌ ΠΊ ΠΏΠΎΠ²ΡΠ΅ΠΆΠ΄Π΅Π½Π½ΠΎΠΉ ΠΎΠ±Π»Π°ΡΡΠΈ.
Π¨Π°Π³ 2:
ΠΡΠΎΠΊΠ»Π°Π΄ΡΠ²Π°ΠΉ ΡΠ²ΠΎΠΉ ΠΏΡΡΡ ΠΊ ΠΏΠΎΠ²ΡΠ΅ΠΆΠ΄Π΅Π½Π½Π°Ρ ΠΏΠ»Π°Π½ΠΊΠ°. Π‘Π΄Π΅Π»Π°ΡΡ ΡΡΠΎ ΠΌΠΎΠΆΠ½ΠΎ, ΡΠ°Π·ΠΎΠ±ΡΠ°Π² Π·Π°ΠΏΠΎΡΠ½ΡΡ ΡΠΈΡΡΠ΅ΠΌΡ Π½Π° ΠΏΠ»Π°Π½ΠΊΠ°Ρ . ΠΊΠΎΡΠΎΡΡΠ΅ ΡΠΎΠ΅Π΄ΠΈΠ½ΡΡΡΡΡ Ρ ΠΏΠΎΠ²ΡΠ΅ΠΆΠ΄Π΅Π½Π½ΡΠΌ ΡΡΠ°ΡΡΠΊΠΎΠΌ. ΠΡ ΡΠ·Π½Π°Π΅ΡΠ΅, ΡΡΠΎ Π΄ΠΎΡΠΊΠΈ ΡΠ°Π·Π±Π»ΠΎΠΊΠΈΡΠΎΠ²Π°Π½Ρ, ΠΊΠΎΠ³Π΄Π° Π²Ρ ΡΠ΄Π°Π»ΠΈΡΡ ΡΠΏΡΠ½Ρ ΠΎΠ΄Π½ΠΎΠΉ Π΄ΠΎΡΠΊΠΈ ΠΈΠ· ΠΏΠ°Π·Π° ΡΠΎΡΠ΅Π΄Π½Π΅ΠΉ Π΄ΠΎΡΠΊΠΈ.
Π¨Π°Π³ 3:
ΠΠΎΠ²ΡΠΎΡΡΠΉΡΠ΅ Π²ΡΠΎΡΠΎΠΉ ΡΠ°Π³, ΠΏΠΎΠΊΠ° ΠΡ Π΄ΠΎΡΡΠΈΠ³Π»ΠΈ ΠΏΠΎΠ²ΡΠ΅ΠΆΠ΄Π΅Π½Π½ΠΎΠΉ Π΄ΠΎΡΠΊΠΈ. ΠΡΠΎ ΠΌΠΎΠΆΠ΅Ρ ΠΎΠ·Π½Π°ΡΠ°ΡΡ ΡΠ΄Π°Π»Π΅Π½ΠΈΠ΅ Π½Π΅ΡΠΊΠΎΠ»ΡΠΊΠΈΡ Π΄ΠΎΡΠΎΠΊ, ΡΡΠΎΠ±Ρ Π΄ΠΎΠ±ΡΠ°ΡΡΡΡ Π΄ΠΎ ΠΏΠΎΠ²ΡΠ΅ΠΆΠ΄Π΅Π½Π½ΠΎΠ³ΠΎ ΡΡΠ°ΡΡΠΊΠ° Π² Π·Π°Π²ΠΈΡΠΈΠΌΠΎΡΡΠΈ ΠΎΡ Π²Π°ΡΠ΅Π³ΠΎ ΠΏΡΠΎΡΡΡΠ°Π½ΡΡΠ²Π°.
Π¨Π°Π³ 4:
ΠΡΡΠ°ΡΠΈΡΠ΅ ΠΏΠΎΠ²ΡΠ΅ΠΆΠ΄Π΅Π½Π½ΡΠΉ
ΠΏΠ»Π°Π½ΠΊΡ ΠΈ Π·Π°ΠΌΠ΅Π½ΠΈΡΠ΅ Π΅Π΅ Π½Π° Π½ΠΎΠ²ΡΡ. Π£Π±Π΅Π΄ΠΈΡΠ΅ΡΡ, ΡΡΠΎ ΠΎΠ½ Π·Π°ΡΠΈΠΊΡΠΈΡΠΎΠ²Π°Π½ Π½Π° ΠΌΠ΅ΡΡΠ΅
ΠΏΠ΅ΡΠ΅Π΄ ΠΏΠΎΠ²ΡΠΎΡΠ½ΠΎΠΉ ΡΠ±ΠΎΡΠΊΠΎΠΉ ΠΏΠΎΠ»Π° Π·Π°ΡΠΈΠΊΡΠΈΡΡΠΉΡΠ΅ ΠΊΠ°ΠΆΠ΄ΡΡ Π΄ΠΎΡΠΊΡ Π½Π° ΠΌΠ΅ΡΡΠ΅ Π²ΠΎ Π²ΡΠ΅ΠΌΡ ΡΠ°Π±ΠΎΡΡ.
Π²Π°Ρ ΠΏΡΡΡ ΠΎΠ±ΡΠ°ΡΠ½ΠΎ ΠΊ ΡΡΠ΅Π½Π΅.
Π¨Π°Π³ 5:
ΠΠ°Π²Π΅ΡΡΠΈΡΡ Π·Π°ΠΌΠ΅Π½ΠΎΠΉ ΠΏΠ»ΠΈΠ½ΡΡΡ, ΠΊΠΎΡΠΎΡΡΠΉ Π²Π°ΠΌ ΠΏΡΠΈΡΠ»ΠΎΡΡ ΡΠ½ΡΡΡ, ΡΡΠΎΠ±Ρ ΠΏΠΎΡΠΈΠ½ΠΈΡΡ ΠΏΠΎΠ²ΡΠ΅ΠΆΠ΄Π΅Π½Π½ΡΠΉ Π»Π°ΠΌΠΈΠ½ΠΈΡΠΎΠ²Π°Π½Π½ΡΠΉ ΠΏΠΎΠ».
ΠΡΠΎΡΠ΅ΡΡΠΈΠΎΠ½Π°Π»ΡΠ½ΡΠΉ Π½Π°ΠΊΠΎΠ½Π΅ΡΠ½ΠΈΠΊ:
ΠΠΎΡΡΠΈΠΆΠ΅Π½ΠΈΠ΅ ΠΏΠΎΠ²ΡΠ΅ΠΆΠ΄Π΅Π½Π½ΠΎΠ³ΠΎ Π΄ΠΎΡΠΊΠ°, ΠΊΠΎΡΠΎΡΠ°Ρ Π½Π°Ρ ΠΎΠ΄ΠΈΡΡΡ Π² ΡΠ΅Π½ΡΡΠ΅ Π±ΠΎΠ»ΡΡΠΎΠΉ ΠΊΠΎΠΌΠ½Π°ΡΡ, ΠΌΠΎΠΆΠ΅Ρ Π·Π°Π½ΡΡΡ ΠΌΠ½ΠΎΠ³ΠΎ Π²ΡΠ΅ΠΌΠ΅Π½ΠΈ.ΠΠΎΠΊΠ° ΡΡΠΎ ΠΌΠΎΠΆΠ½ΠΎ Π²ΡΡΠ²Π΅ΡΠ»ΠΈΡΡ ΠΏΠΎΠ²ΡΠ΅ΠΆΠ΄Π΅Π½Π½ΡΡ Π΄ΠΎΡΠΊΡ, Π½Π΅ ΡΠ΄Π°Π»ΡΡ Π΄ΡΡΠ³ΠΈΠ΅ Π²ΠΎΠΊΡΡΠ³ Π½Π΅Π΅, ΡΡΠΎ ΠΏΡΠΎΡΠ΅Π΄ΡΡΡ Π»ΡΡΡΠ΅ Π΄ΠΎΠ²Π΅ΡΠΈΡΡ ΠΎΠ±ΡΡΠ΅Π½Π½ΠΎΠΌΡ ΡΠΏΠ΅ΡΠΈΠ°Π»ΠΈΡΡΡ, ΡΠ°ΠΊ ΠΊΠ°ΠΊ ΠΎΠ½Π° ΡΡΠ΅Π±ΡΠ΅Ρ ΠΎΠΏΡΡΠ° ΠΈ ΡΠΏΠ΅ΡΠΈΠ°Π»ΡΠ½ΡΠ΅ Π½Π°Π²ΡΠΊΠΈ Π΄Π»Ρ ΠΏΡΠ°Π²ΠΈΠ»ΡΠ½ΠΎΠ³ΠΎ Π²ΡΠΏΠΎΠ»Π½Π΅Π½ΠΈΡ. Π‘Π°ΠΌΠΎΡΡΠΎΡΡΠ΅Π»ΡΠ½Π°Ρ ΠΏΠΎΠΏΡΡΠΊΠ° Π²ΡΠΏΠΎΠ»Π½ΠΈΡΡ ΡΡΡ ΠΏΡΠΎΡΠ΅Π΄ΡΡΡ ΠΌΠΎΠΆΠ΅Ρ ΠΏΠΎΠ²ΡΠ΅Π΄ΠΈΡΡ Π½Π΅ΡΠΊΠΎΠ»ΡΠΊΠΎ ΠΎΠΊΡΡΠΆΠ°ΡΡΠΈΡ Π΄ΠΎΡΠΎΠΊ, ΠΎΡΡΠ°Π²ΠΈΠ² Π²Π°ΠΌ Π΄ΠΎΡΠΎΠ³ΠΎΡΡΠΎΡΡΠΈΠΉ ΡΠ΅ΠΌΠΎΠ½Ρ.
Π‘Π½Π°ΡΡΠΈ Π΄Π»Ρ ΡΠΊΠ»Π°Π΄ΡΠ²Π°Π½ΠΈΡ ΠΈ ΠΏΠΎΠ΄ΡΠ΅ΠΌΠ° Π»Π°ΠΌΠΈΠ½ΠΈΡΠΎΠ²Π°Π½Π½ΡΡ ΠΏΠΎΠ»ΠΎΠ²
ΠΠ·Π³ΠΈΠ±, ΠΏΠΎΠ΄ΡΠ΅ΠΌ
Π»Π°ΠΌΠΈΠ½ΠΈΡΠΎΠ²Π°Π½Π½ΡΠ΅ ΠΏΠΎΠ»Ρ ΠΌΠΎΠ³ΡΡ ΡΠ±ΠΈΡΡ Ρ ΡΠΎΠ»ΠΊΡ ΡΡΠ΅Π΄Π½Π΅Π³ΠΎ Π΄ΠΎΠΌΠΎΠ²Π»Π°Π΄Π΅Π»ΡΡΠ°. ΠΠΎΠΊΠ° Π»Π°ΠΌΠΈΠ½Π°Ρ
ΠΎΡΠ΅Π½Ρ ΠΏΡΠΎΡΠ½ΡΠΉ, Π΅ΡΡΡ ΡΡΠ΄ ΠΏΡΠΈΡΠΈΠ½, ΠΏΠΎ ΠΊΠΎΡΠΎΡΡΠΌ ΠΎΠ½ ΠΌΠΎΠΆΠ΅Ρ ΠΏΡΠΎΠ³ΠΈΠ±Π°ΡΡΡΡ ΠΈΠ»ΠΈ ΠΏΠΎΠ΄Π½ΠΈΠΌΠ°ΡΡΡΡ ΡΠΎ Π²ΡΠ΅ΠΌΠ΅Π½Π΅ΠΌ.ΠΠΎΠ²ΡΠ΅ΠΆΠ΄Π΅Π½ΠΈΠ΅ Π²ΠΎΠ΄ΠΎΠΉ, ΠΎΡΡΡΡΡΡΠ²ΠΈΠ΅ Π°ΠΊΠΊΠ»ΠΈΠΌΠ°ΡΠΈΠ·Π°ΡΠΈΠΈ ΠΏΠ΅ΡΠ΅Π΄ ΡΡΡΠ°Π½ΠΎΠ²ΠΊΠΎΠΉ ΠΈ ΡΠ°ΡΡΠΈΡΠΈΡΠ΅Π»ΡΠ½ΡΠΉ Π·Π°Π·ΠΎΡ
ΡΡΠΎ ΡΠ»ΠΈΡΠΊΠΎΠΌ ΠΌΠ°Π»ΠΎ ΠΈΠ»ΠΈ Π½Π΅ ΡΡΡΠ΅ΡΡΠ²ΡΠ΅Ρ, ΡΠ²Π»ΡΡΡΡΡ ΠΎΠ±ΡΠΈΠΌΠΈ Π²ΠΈΠ½ΠΎΠ²Π½ΠΈΠΊΠ°ΠΌΠΈ.
ΠΡΡΠΎΠΊΠΈΠ΅ ΡΠ΅ΠΌΠΏΠ΅ΡΠ°ΡΡΡΡ ΠΌΠΎΠ³ΡΡ
ΡΠΎΠΆΠ΅ Π±ΡΡΡ Π²ΠΈΠ½ΠΎΠ²Π°ΡΡΠΌ.
ΠΡΠΏΠΎΠ»ΡΠ·ΡΠΉΡΠ΅ ΡΡΠΈ ΡΠ°Π³ΠΈ Π΄Π»Ρ ΠΏΠΎΠΌΠΎΡΡ Π²Π°ΠΌ ΠΎΡΠ΅Π½ΠΈΡΡ ΠΈ ΠΎΡΡΠ΅ΠΌΠΎΠ½ΡΠΈΡΠΎΠ²Π°ΡΡ Π΄Π΅ΡΠΎΡΠΌΠ°ΡΠΈΡ ΠΈ ΠΏΠΎΠ΄ΡΠ΅ΠΌ Π»Π°ΠΌΠΈΠ½ΠΈΡΠΎΠ²Π°Π½Π½ΡΡ ΠΏΠΎΠ»ΠΎΠ².
Π¨Π°Π³ 1:
ΠΡΡΡΠ½ΠΈΡΠ΅, ΠΏΠΎΡΠ΅ΠΌΡ Π²Π°Ρ Π»Π°ΠΌΠΈΠ½Π°Ρ ΠΈΡΠΏΠΎΡΡΠΈΠ»ΡΡ Π² ΠΏΠ΅ΡΠ²ΡΡ ΠΎΡΠ΅ΡΠ΅Π΄Ρ. Π’Π°ΠΊΠΈΠ΅ ΠΏΡΠΎΠ±Π»Π΅ΠΌΡ, ΠΊΠ°ΠΊ ΠΏΠΎΠ²ΡΠ΅ΠΆΠ΄Π΅Π½ΠΈΠ΅ Π²ΠΎΠ΄ΠΎΠΉ ΠΈ Π²ΡΡΠΎΠΊΠ°Ρ ΡΠ΅ΠΌΠΏΠ΅ΡΠ°ΡΡΡΠ° Π΄ΠΎΠ»ΠΆΠ½Π° Π±ΡΡΡ ΡΠ°ΡΡΠΌΠΎΡΡΠ΅Π½Π° ΠΈ ΠΈΡΠΏΡΠ°Π²Π»Π΅Π½Π°. ΠΡΠ»ΠΈ ΠΏΡΠΎΠ±Π»Π΅ΠΌΠ° Π² ΠΏΠ»ΠΎΡ ΠΎΠΌ ΡΠ°ΡΡΠΈΡΠΈΡΠ΅Π»ΡΠ½ΠΎΠΌ Π·Π°Π·ΠΎΡΠ΅ Π²Ρ Π·Π°Ρ ΠΎΡΠΈΡΠ΅ ΠΈΠ·Π±Π΅ΠΆΠ°ΡΡ ΡΠΎΠΉ ΠΆΠ΅ ΠΎΡΠΈΠ±ΠΊΠΈ ΠΏΡΠΈ ΡΠΊΠ»Π°Π΄ΠΊΠ΅ Π½ΠΎΠ²ΠΎΠ³ΠΎ Π»Π°ΠΌΠΈΠ½Π°ΡΠ°.
Π¨Π°Π³ 2:
Π‘Π½ΠΈΠΌΠΈΡΠ΅ ΠΌΠΎΠ»Π΄ΠΈΠ½Π³ ΠΈΠ»ΠΈ ΠΌΠΎΠ»Π΄ΠΈΠ½Π³ΠΈ Π²ΠΎΠ·Π»Π΅ ΠΏΠΎΠ²ΡΠ΅ΠΆΠ΄Π΅Π½Π½ΠΎΠ³ΠΎ Π»Π°ΠΌΠΈΠ½Π°ΡΠ°. ΠΠ°ΠΌ Π½ΡΠΆΠ½ΠΎ Π±ΡΠ΄Π΅Ρ ΡΠ΄Π΅Π»Π°ΡΡ ΡΡΠΎ, ΡΡΠΎΠ±Ρ ΠΏΠΎΠ»ΡΡΠΈΡΡ Π΄ΠΎΡΡΡΠΏ ΠΈ ΡΠ΄Π°Π»ΠΈΡΡ Π΄ΠΎΡΠΊΠΈ.
Π¨Π°Π³ 3:
ΠΡΡΠΎΡΠΎΠΆΠ½ΠΎ ΡΠ΄Π°Π»ΠΈΡΡ Π»Π°ΠΌΠΈΠ½Π°Ρ, Π²Π΅Π΄ΡΡΠΈΠΉ ΠΎΡ ΡΡΠ΅Π½Ρ ΠΈ ΠΌΠΎΠ»Π΄ΠΈΠ½Π³ ΠΊ ΠΏΡΠΎΠ±Π»Π΅ΠΌΠ½ΠΎΠΉ Π·ΠΎΠ½Π΅. ΠΡΠ»ΠΈ ΡΡΠΈ Π΄ΠΎΡΠΊΠΈ Π½Π°Ρ ΠΎΠ΄ΡΡΡΡ Π² Ρ ΠΎΡΠΎΡΠ΅ΠΌ ΡΠΎΡΡΠΎΡΠ½ΠΈΠΈ, ΠΈΡ ΠΌΠΎΠΆΠ½ΠΎ ΠΈΡΠΏΠΎΠ»ΡΠ·ΠΎΠ²Π°ΡΡ ΠΏΠΎΠ²ΡΠΎΡΠ½ΠΎ ΠΏΠΎΠ·ΠΆΠ΅, Π΅ΡΠ»ΠΈ Π²Ρ Π½Π΅ ΠΏΠΎΠ²ΡΠ΅Π΄ΠΈΡΠ΅ ΡΠΈΡΡΠ΅ΠΌΠ° Π±Π»ΠΎΠΊΠΈΡΠΎΠ²ΠΊΠΈ.
Π¨Π°Π³ 4:
Π£Π΄Π°Π»ΠΈΡΡ ΠΏΠΎΠ²ΡΠ΅ΠΆΠ΄Π΅Π½Π½ΡΠ΅ Π΄ΠΎΡΠΊΠΈ
ΠΈ Π·Π°ΠΌΠ΅Π½ΠΈΡΡ ΠΈΡ
Π½ΠΎΠ²ΡΠΌΠΈ. ΠΠ°Π±Π»ΠΎΠΊΠΈΡΡΠΉΡΠ΅ Π½ΠΎΠ²ΡΠ΅ Π΄ΠΎΡΠΊΠΈ ΠΈ ΠΏΡΠΎΠ΄ΠΎΠ»ΠΆΠ°ΠΉΡΠ΅ ΡΠ°Π±ΠΎΡΠ°ΡΡ
Π½Π°Π·Π°Π΄ ΠΊ ΠΌΠΎΠ»Π΄ΠΈΠ½Π³Ρ ΠΈ ΡΡΠ΅Π½Π΅.
ΠΡΠ΄ΡΡΠ΅ ΠΎΡΡΠΎΡΠΎΠΆΠ½Ρ, ΡΡΠΎΠ±Ρ ΠΎΡΡΠ°Π²ΠΈΡΡ ΡΠΎΠΎΡΠ²Π΅ΡΡΡΠ²ΡΡΡΠΈΠΉ
ΡΠ°ΡΡΠΈΡΠΈΡΠ΅Π»ΡΠ½ΡΠΉ Π·Π°Π·ΠΎΡ Ρ ΡΡΠ΅Π½Ρ.
Π¨Π°Π³ 5:
ΠΠ°ΠΌΠ΅Π½ΠΈΡΡ ΠΌΠΎΠ»Π΄ΠΈΠ½Π³ ΡΡΠΎΠ±Ρ Π·Π°ΠΊΠΎΠ½ΡΠΈΡΡ ΡΠ°Π±ΠΎΡΡ. ΠΠ°Π½Π΅ΡΠΈΡΠ΅ Π»ΡΠ±ΡΡ ΠΏΠΎΠ΄ΠΊΡΠ°ΡΠΈΠ²Π°ΡΡΡΡ ΠΊΡΠ°ΡΠΊΡ, Π΅ΡΠ»ΠΈ ΠΌΠΎΠ»Π΄ΠΈΠ½Π³ Π±ΡΠ» ΠΏΠΎΠ²ΡΠ΅ΠΆΠ΄Π΅Π½. Π²ΠΎ Π²ΡΠ΅ΠΌΡ Π²Π°ΡΠ΅Π³ΠΎ ΡΠ΅ΠΌΠΎΠ½ΡΠ°.
ΠΡΠΎΡΠ΅ΡΡΠΈΠΎΠ½Π°Π»ΡΠ½ΡΠΉ Π½Π°ΠΊΠΎΠ½Π΅ΡΠ½ΠΈΠΊ:
ΠΠ°ΠΊΠ°Π·Π°ΡΡ ΠΈ ΡΠΎΡ ΡΠ°Π½ΠΈΡΡ Π΄ΠΎΠΏΠΎΠ»Π½ΠΈΡΠ΅Π»ΡΠ½ΠΎ Π»Π°ΠΌΠΈΠ½Π°Ρ ΡΠ΄ΠΎΠ±Π΅Π½, ΡΠ°ΠΊ ΡΡΠΎ Π²Ρ ΠΌΠΎΠΆΠ΅ΡΠ΅ Π±ΡΡΡΡΠΎ Π·Π°ΠΌΠ΅Π½ΠΈΡΡ ΠΏΠΎΠ²ΡΠ΅ΠΆΠ΄Π΅Π½Π½ΡΠ΅ Π΄ΠΎΡΠΊΠΈ. ΠΡΠΈ Π·Π°ΠΊΠ°Π·Π΅ Π±ΠΎΠ»ΡΡΠ΅ ΡΠ΅ΠΏΠ΅ΡΡ Π²Ρ ΠΌΠΎΠΆΠ΅ΡΠ΅ Π±ΡΡΡ ΡΠ²Π΅ΡΠ΅Π½Ρ, ΡΡΠΎ Π²Π°ΡΠΈ ΡΠΌΠ΅Π½Π½ΡΠ΅ Π»Π°ΠΌΠΈΠ½ΠΈΡΠΎΠ²Π°Π½Π½ΡΠ΅ Π΄ΠΎΡΠΊΠΈ Π±ΡΠ΄ΡΡ ΡΠΎΠΎΡΠ²Π΅ΡΡΡΠ²ΠΎΠ²Π°ΡΡ ΠΎΡΠ»ΠΈΡΠ½ΠΎ ΡΠΎ ΡΠ²ΠΎΠΈΠΌΠΈ ΡΡΠ°ΡΡΠΈΠΌΠΈ.
Π Π΅ΠΌΠΎΠ½Ρ ΠΏΠΎΠ²ΡΠ΅ΠΆΠ΄Π΅Π½Π½ΠΎΠ³ΠΎ ΡΠΊΠ»Π°Π΄ΠΊΠ° Π»Π°ΠΌΠΈΠ½Π°ΡΠ° Π½Π΅ ΠΎΠ±ΡΠ·Π°ΡΠ΅Π»ΡΠ½ΠΎ Π΄ΠΎΠ»ΠΆΠ½Π° Π±ΡΡΡ ΠΎΠ³ΡΠΎΠΌΠ½ΠΎΠΉ ΡΠ°Π±ΠΎΡΠΎΠΉ, Π΄Π»Ρ ΠΊΠΎΡΠΎΡΠΎΠΉ ΡΡΠ΅Π±ΡΡΡΡΡ ΠΏΡΠΎΡΠ΅ΡΡΠΈΠΎΠ½Π°Π»Ρ.ΠΠ° Π½Π΅Π±ΠΎΠ»ΡΡΠΈΠ΅ Π·Π°Π΄Π°ΡΠΈ, ΡΠ°ΠΊΠΈΠ΅ ΠΊΠ°ΠΊ Π·Π°ΠΌΠ΅Π½Π° Π΄ΠΎΡΠΊΠΈ, Π²Ρ, Π²Π΅ΡΠΎΡΡΠ½ΠΎ, ΡΠΌΠΎΠΆΠ΅ΡΠ΅ Π²ΡΠΏΠΎΠ»Π½ΠΈΡΡ ΡΡΡ ΡΠ°Π±ΠΎΡΡ ΡΠ΅Π±Ρ Π²ΠΎ Π²ΡΠΎΡΠΎΠΉ ΠΏΠΎΠ»ΠΎΠ²ΠΈΠ½Π΅ Π΄Π½Ρ. ΠΠΎΠ»ΡΡΠΈΠ΅ ΡΠ°Π±ΠΎΡΡ ΠΌΠΎΠ³ΡΡ ΠΏΠΎΡΡΠ΅Π±ΠΎΠ²Π°ΡΡ Π±ΠΎΠ»ΡΡΠ΅ Π²ΡΠ΅ΠΌΠ΅Π½ΠΈ ΠΈ ΡΠ΅ΡΠΏΠ΅Π½ΠΈΡ, Π½ΠΎ Π½Π΅ΠΌΠ½ΠΎΠ³ΠΎ ΡΠΈΠ»Ρ Π΄ΡΡ Π°, ΠΈ Π²Ρ ΠΏΠΎΠΉΠΌΠ΅ΡΠ΅, ΡΡΠΎ Π»Π°ΠΌΠΈΠ½Π°Ρ β ΠΈΠ΄Π΅Π°Π»ΡΠ½ΡΠΉ ΠΌΠ°ΡΠ΅ΡΠΈΠ°Π» Π΄Π»Ρ ΡΠ°Π±ΠΎΡΠ°ΡΡ Ρ.
Π₯ΠΎΡΡ ΠΏΠΎΠΉΡΠΈ Π½Π°
ΠΎΠ±Π½ΠΎΠ²ΠΈΡΡ Π²ΠΌΠ΅ΡΡΠΎ Π·Π°ΠΌΠ΅Π½Ρ ΡΡΠ°ΡΠΎΠ³ΠΎ, ΠΏΠΎΠ²ΡΠ΅ΠΆΠ΄Π΅Π½Π½ΠΎΠ³ΠΎ Π»Π°ΠΌΠΈΠ½Π°ΡΠ°? ΠΡ ΠΌΠΎΠΆΠ΅ΠΌ ΠΏΠΎΠΌΠΎΡΡ Π²Π°ΠΌ ΠΏΠΎΠ΄Π³ΠΎΡΠΎΠ²ΠΈΡΡΡΡ
ΠΎΠ±Π½ΠΎΠ²ΠΈΡΡ Π²Π°ΡΠΈ ΠΏΠΎΠ»Ρ Ρ ΠΏΠΎΠΌΠΎΡΡΡ Π½ΠΎΠ²ΠΎΠ³ΠΎ Π»Π°ΠΌΠΈΠ½Π°ΡΠ° Π² ΡΠ°Π·Π»ΠΈΡΠ½ΡΡ
ΡΡΠΈΠ»ΡΡ
, ΡΡΠΎΠ±Ρ ΡΠΎΠΎΡΠ²Π΅ΡΡΡΠ²ΠΎΠ²Π°ΡΡ
ΡΡΠ°Π΄ΠΈΡΠΈΠΎΠ½Π½ΡΠ΅, ΠΏΠ΅ΡΠ΅Ρ
ΠΎΠ΄Π½ΡΠ΅ ΠΈ ΡΠΎΠ²ΡΠ΅ΠΌΠ΅Π½Π½ΡΠ΅ Π΄ΠΎΠΌΠ°.
ΠΡΠΎΡΡΠΎΡΠ° ΡΡΡΠ°Π½ΠΎΠ²ΠΊΠΈ ΠΈ ΡΠ²Π΅ΡΡ
ΠΏΡΠΎΡΠ½ΡΠΉ,
Π»Π°ΠΌΠΈΠ½Π°Ρ β ΠΎΡΠ»ΠΈΡΠ½ΡΠΉ Π²ΡΠ±ΠΎΡ ΠΏΡΠ°ΠΊΡΠΈΡΠ΅ΡΠΊΠΈ Π΄Π»Ρ ΠΊΠ°ΠΆΠ΄ΠΎΠΉ ΠΊΠΎΠΌΠ½Π°ΡΡ Π² Π²Π°ΡΠ΅ΠΌ Π΄ΠΎΠΌΠ΅.
Π΄ΠΎΠΌΠ°.
Π‘Π²ΡΠΆΠΈΡΠ΅ΡΡ Ρ Π½Π°ΡΠΈΠΌ ΠΎΠ±ΡΡΠ΅Π½Π½ΡΠΌ ΠΏΡΠΎΡΠ΅ΡΡΠΈΠΎΠ½Π°Π»ΡΠ½ΡΡ ΠΏΡΠ΅Π΄ΡΡΠ°Π²ΠΈΡΠ΅Π»Π΅ΠΉ, ΡΡΠΎΠ±Ρ ΡΠ·Π½Π°ΡΡ Π±ΠΎΠ»ΡΡΠ΅ ΠΎ Π΄ΠΎΠ±Π°Π²Π»Π΅Π½ΠΈΠΈ Π½ΠΎΠ²ΠΎΠ³ΠΎ Π»Π°ΠΌΠΈΠ½Π°ΡΠ° Π² Π²Π°Ρ Π΄ΠΎΠΌΠΎΠΉ ΠΈΠ»ΠΈ ΠΏΠΎΠ»ΡΡΠ΅Π½ΠΈΠ΅ Π½Π΅ΠΎΠ±Ρ ΠΎΠ΄ΠΈΠΌΡΡ Π·Π°ΠΏΠ°ΡΠ½ΡΡ ΠΌΠ°ΡΠ΅ΡΠΈΠ°Π»ΠΎΠ² Π΄Π»Ρ ΡΠ΅ΠΌΠΎΠ½ΡΠ°.
ΠΠ°ΠΊ ΡΡΡΡΠ°Π½ΠΈΡΡ 3 ΡΠ°ΡΠΏΡΠΎΡΡΡΠ°Π½Π΅Π½Π½ΡΠ΅ ΠΏΡΠΎΠ±Π»Π΅ΠΌΡ Ρ Π»Π°ΠΌΠΈΠ½ΠΈΡΠΎΠ²Π°Π½Π½ΡΠΌ ΠΏΠΎΠ»ΠΎΠΌΠ£ΡΠ΅Π±Π½ΡΠΉ ΡΠ΅Π½ΡΡ
Π‘ΡΠΈΠ»Ρ ΡΠΎΡΠ΅ΡΠ°Π΅ΡΡΡ Ρ Π΄ΠΎΠ»Π³ΠΎΠ²Π΅ΡΠ½ΠΎΡΡΡΡ Ρ ΡΡΠΈΠΌΠΈ ΠΊΡΠ°ΡΠΈΠ²ΡΠΌΠΈ Π»Π°ΠΌΠΈΠ½ΠΈΡΠΎΠ²Π°Π½Π½ΡΠΌΠΈ ΠΏΠΎΠ»Π°ΠΌΠΈ. Π‘ Π»Π°ΠΌΠΈΠ½Π°ΡΠΎΠΌ Lamton β 12-ΠΌΠΈΠ»Π»ΠΈΠΌΠ΅ΡΡΠΎΠ²Π°Ρ ΡΠΊΠ·ΠΎΡΠΈΡΠ΅ΡΠΊΠ°Ρ ΠΊΠΎΠ»Π»Π΅ΠΊΡΠΈΡ Π² ΡΠ²Π΅ΡΠ΅ West Betawi Grey ΠΡΡΠΈΠΊΡΠ»: 10079691 ΠΠ΅Π·Π°Π²ΠΈΡΠΈΠΌΠΎ ΠΎΡ ΡΠΎΠ³ΠΎ, Π±ΡΠ» Π»ΠΈ Π»Π°ΠΌΠΈΠ½Π°Ρ Π² Π²Π°ΡΠ΅ΠΌ Π΄ΠΎΠΌΠ΅ Π΅ΡΠ΅ Π΄ΠΎ ΡΠΎΠ³ΠΎ, ΠΊΠ°ΠΊ Π²Ρ Π²ΡΠ΅Ρ
Π°Π»ΠΈ, ΠΈΠ»ΠΈ Π²Ρ Π½Π΅Π΄Π°Π²Π½ΠΎ ΡΠ»ΠΎΠΆΠΈΠ»ΠΈ Π΅Π³ΠΎ ΡΠ°ΠΌΠΎΡΡΠΎΡΡΠ΅Π»ΡΠ½ΠΎ, Π²Π°ΠΌ Π½ΡΠΆΠ½ΠΎ ΠΏΠΎΠ΄Π΄Π΅ΡΠΆΠΈΠ²Π°ΡΡ Π΅Π³ΠΎ Π² Ρ
ΠΎΡΠΎΡΠ΅ΠΌ ΡΠΎΡΡΠΎΡΠ½ΠΈΠΈ.Π ΡΠΎΠΆΠ°Π»Π΅Π½ΠΈΡ, ΠΈΠ½ΠΎΠ³Π΄Π° Π²ΠΎΠ·Π½ΠΈΠΊΠ°ΡΡ ΠΏΡΠΎΠ±Π»Π΅ΠΌΡ. Π₯ΠΎΡΠΎΡΠ°Ρ Π½ΠΎΠ²ΠΎΡΡΡ Π·Π°ΠΊΠ»ΡΡΠ°Π΅ΡΡΡ Π² ΡΠΎΠΌ, ΡΡΠΎ Π²ΠΎ ΠΌΠ½ΠΎΠ³ΠΈΡ
ΡΠ»ΡΡΠ°ΡΡ
Π²Ρ ΠΌΠΎΠΆΠ΅ΡΠ΅ ΡΠ΅ΡΠΈΡΡ ΠΏΡΠΎΠ±Π»Π΅ΠΌΡ, Π½Π΅ Π·Π°ΠΌΠ΅Π½ΡΡ ΠΏΠΎΠ»ΠΎΠ²ΡΠ΅ Π΄ΠΎΡΠΊΠΈ Π²ΠΎ Π²ΡΠ΅ΠΉ ΠΊΠΎΠΌΠ½Π°ΡΠ΅.
ΠΠ·Π½Π°ΠΊΠΎΠΌΡΡΠ΅ΡΡ Ρ Π½Π°ΡΠΈΠΌ ΠΏΠΎΡΠ°Π³ΠΎΠ²ΡΠΌ ΡΡΠΊΠΎΠ²ΠΎΠ΄ΡΡΠ²ΠΎΠΌ ΠΏΠΎ ΡΠ΅ΠΌΠΎΠ½ΡΡ Π»Π°ΠΌΠΈΠ½Π°ΡΠ° Π² ΡΡΠ΅Ρ
Π½Π°ΠΈΠ±ΠΎΠ»Π΅Π΅ ΡΠ°ΡΠΏΡΠΎΡΡΡΠ°Π½Π΅Π½Π½ΡΡ
ΠΎΠ±Π»Π°ΡΡΡΡ
.
ΠΠ°ΠΊΠ°Π· ΠΎΠ±ΡΠ°Π·ΡΠΎΠ² Π±Π΅ΡΠΏΠ»Π°ΡΠ½ΠΎ
ΠΠΎΠ»ΡΡΠΈΡΠ΅ 5 Π±Π΅ΡΠΏΠ»Π°ΡΠ½ΡΡ ΠΎΠ±ΡΠ°Π·ΡΠΎΠ². ΠΡΠ΅Π΄ΠΈΡΠ½Π°Ρ ΠΊΠ°ΡΡΠ° Π½Π΅ ΡΡΠ΅Π±ΡΠ΅ΡΡΡ.
ΠΠ±ΡΠ°Π·ΡΡ ΠΎΡΠΏΡΠ°Π²Π»Π΅Π½Ρ ΠΏΡΡΠΌΠΎ ΠΊ Π²Π°ΡΠ΅ΠΉ Π΄Π²Π΅ΡΠΈ.
ΠΠ°ΠΊ ΠΎΡΡΠ΅ΠΌΠΎΠ½ΡΠΈΡΠΎΠ²Π°ΡΡ Π»Π°ΠΌΠΈΠ½ΠΈΡΠΎΠ²Π°Π½Π½ΡΠΉ ΠΏΠΎΠ»: ΡΠΊΠΎΡΠ°ΡΠΈΠ²Π°Π½ΠΈΠ΅
ΠΡΠ»ΠΈ Π²Ρ Π·Π°ΠΌΠ΅ΡΠΈΠ»ΠΈ, ΡΡΠΎ ΠΏΠΎΠ»ΠΎΠ²ΠΈΡΡ ΡΠΏΠΈΡΠ°ΡΡΡΡ Π΄ΡΡΠ³ Π² Π΄ΡΡΠ³Π° ΠΏΠΎ ΡΠ²Π°ΠΌ, ΠΎΠ±ΡΠ°Π·ΡΡ Π½Π° ΠΏΠΎΠ»Ρ ΠΊΠΎΠΌΠΎΠΊ, Π½Π°ΠΏΠΎΠΌΠΈΠ½Π°ΡΡΠΈΠΉ ΠΊΠΎΠ·ΡΡΠ΅ΠΊ ΠΊΡΡΡΠΈ, Π·Π½Π°ΡΠΈΡ, ΠΏΡΠΎΠ±Π»Π΅ΠΌΠ° Π² ΠΎΡΡΡΠΎΡΠ΅.ΠΡΡΡΡΠΏ ΠΏΡΠΎΠΈΡΡ ΠΎΠ΄ΠΈΡ, ΠΊΠΎΠ³Π΄Π° ΠΏΠΎΠ»ΠΎΠ²ΠΈΡΠ°ΠΌ Π½Π΅ Ρ Π²Π°ΡΠ°Π΅Ρ ΠΌΠ΅ΡΡΠ° Π΄Π»Ρ ΡΠ°ΡΡΠΈΡΠ΅Π½ΠΈΡ ΠΈ ΡΠΆΠ°ΡΠΈΡ.
Π§ΡΠΎΠ±Ρ ΠΈΠ·Π±Π΅ΠΆΠ°ΡΡ Π΄Π°Π»ΡΠ½Π΅ΠΉΡΠΈΡ ΠΏΠΎΠ²ΡΠ΅ΠΆΠ΄Π΅Π½ΠΈΠΉ, Π²Ρ Π΄ΠΎΠ»ΠΆΠ½Ρ ΡΡΡΡΠ°Π½ΠΈΡΡ ΠΏΡΠΎΠ±Π»Π΅ΠΌΡ ΠΊΠ°ΠΊ ΠΌΠΎΠΆΠ½ΠΎ ΡΠΊΠΎΡΠ΅Π΅.
ΠΠ°ΠΉΠ΄ΠΈΡΠ΅ ΠΎΡΠ½ΠΎΠ²Π½ΡΡ ΠΏΡΠΎΠ±Π»Π΅ΠΌΡ Π»Π°ΠΌΠΈΠ½Π°ΡΠ°
ΠΡΠΏΡΡΠΈΠ²Π°Π½ΠΈΠ΅ ΠΎΠ±ΡΡΠ½ΠΎ ΠΏΡΠΎΠΈΡΡ ΠΎΠ΄ΠΈΡ, ΠΊΠΎΠ³Π΄Π° ΠΌΠ΅ΠΆΠ΄Ρ ΠΏΠΎΠ»ΠΎΠΌ ΠΈ ΡΡΠ΅Π½Π°ΠΌΠΈ Π½Π΅Ρ ΠΊΠΎΠΌΠΏΠ΅Π½ΡΠ°ΡΠΈΠΎΠ½Π½ΠΎΠ³ΠΎ Π·Π°Π·ΠΎΡΠ°, ΠΊΠΎΠ³Π΄Π° ΠΊΠΎΠΌΠΏΠ΅Π½ΡΠ°ΡΠΈΠΎΠ½Π½ΡΠΉ Π·Π°Π·ΠΎΡ ΡΠ»ΠΈΡΠΊΠΎΠΌ ΠΌΠ°Π», ΠΈΠ»ΠΈ Π΅ΡΠ»ΠΈ ΠΌΠΎΠ»Π΄ΠΈΠ½Π³ΠΈ ΠΏΡΠΈΠΊΡΠ΅ΠΏΠ»Π΅Π½Ρ ΠΊ Π»Π°ΠΌΠΈΠ½Π°ΡΡ. Π§ΡΠΎΠ±Ρ Π½Π°ΠΉΡΠΈ ΠΎΡΠ½ΠΎΠ²Π½ΡΡ ΠΏΡΠΎΠ±Π»Π΅ΠΌΡ:
- Π‘Π»Π΅Π΄ΡΠΉΡΠ΅ ΠΏΠΎ ΠΊΠΎΠ·ΡΡΡΠΊΠ°ΠΌ ΠΊ Π±Π»ΠΈΠΆΠ°ΠΉΡΠ΅ΠΉ ΡΡΠ΅Π½Π΅.

- ΠΡΠΎΠ²Π΅ΡΡΡΠ΅ Π½Π°Π»ΠΈΡΠΈΠ΅ Π·Π°Π·ΠΎΡΠ° ΠΌΠ΅ΠΆΠ΄Ρ Π΄ΠΎΡΠΊΠΎΠΉ ΠΈ ΡΡΠ΅Π½ΠΎΠΉ ΠΈΠ»ΠΈ Π±Π»ΠΈΠΆΠ°ΠΉΡΠΈΠΌΠΈ ΠΏΠΎΡΡΠΎΡΠ½Π½ΡΠΌΠΈ ΠΏΡΠΈΡΠΏΠΎΡΠΎΠ±Π»Π΅Π½ΠΈΡΠΌΠΈ, ΡΠ°ΠΊΠΈΠΌΠΈ ΠΊΠ°ΠΊ ΡΠΊΠ°ΡΡ. ΠΠ°Π·ΠΎΡ Π² 0,25 Π΄ΡΠΉΠΌΠ° ΠΎΠ±ΡΡΠ½ΠΎ ΠΎΠ±Π΅ΡΠΏΠ΅ΡΠΈΠ²Π°Π΅Ρ Π΄ΠΎΡΡΠ°ΡΠΎΡΠ½ΠΎ ΠΌΠ΅ΡΡΠ°.
- ΠΡΠΎΠ²Π΅ΡΡΡΠ΅ ΠΌΠΎΠ»Π΄ΠΈΠ½Π³ΠΈ Π½Π° Π½Π°Π»ΠΈΡΠΈΠ΅ Π³Π²ΠΎΠ·Π΄Π΅ΠΉ ΠΈΠ»ΠΈ ΠΊΠ»Π΅Ρ, ΠΊΠΎΡΠΎΡΡΠΌΠΈ ΠΎΠ½ΠΈ ΠΌΠΎΠ³Π»ΠΈ Π±ΡΡΡ ΠΏΡΠΈΠΊΡΠ΅ΠΏΠ»Π΅Π½Ρ ΠΊ ΠΏΠΎΠ»ΠΎΠ²ΠΈΡΠ°ΠΌ.
Π£ΡΡΡΠ°Π½Π΅Π½ΠΈΠ΅ ΠΎΡΠ½ΠΎΠ²Π½ΠΎΠΉ ΠΏΡΠΎΠ±Π»Π΅ΠΌΡ Ρ Π»Π°ΠΌΠΈΠ½Π°ΡΠΎΠΌ
ΠΡΠ»ΠΈ ΠΌΠΎΠ»Π΄ΠΈΠ½Π³ΠΈ ΠΏΡΠΈΠΊΡΠ΅ΠΏΠ»Π΅Π½Ρ ΠΊ ΠΏΠΎΠ»ΠΎΠ²ΠΈΡΠ°ΠΌ, ΡΠ΄Π°Π»ΠΈΡΠ΅ Π³Π²ΠΎΠ·Π΄ΠΈ ΠΈΠ»ΠΈ ΡΠ΄Π°Π»ΠΈΡΠ΅ ΠΊΠ»Π΅ΠΉ.
ΠΡΠ»ΠΈ Π² ΠΏΠΎΠ»Ρ Π½Π΅Ρ Π΄ΠΎΡΡΠ°ΡΠΎΡΠ½ΠΎΠ³ΠΎ ΡΠ°ΡΡΠΈΡΠΈΡΠ΅Π»ΡΠ½ΠΎΠ³ΠΎ Π·Π°Π·ΠΎΡΠ°, Π΅Π³ΠΎ Π½Π΅ΠΎΠ±Ρ ΠΎΠ΄ΠΈΠΌΠΎ ΡΠ΄Π΅Π»Π°ΡΡ.ΠΡΠΎΡΡΠΎ ΡΠ½ΠΈΠΌΠΈΡΠ΅ ΠΏΠ»ΠΈΠ½ΡΡΡ ΠΈ Π²ΡΡΠ΅ΠΆΡΡΠ΅ ΡΡΠ°ΡΡΠΎΠΊ ΠΏΠΎΠ»Π° ΠΌΠ΅ΠΆΠ΄Ρ ΠΏΠΎΠ»ΠΎΠΌ ΠΈ ΡΡΠ΅Π½Π°ΠΌΠΈ. ΠΠΎΠ»Π΅Π·Π½ΡΠ΅ ΠΈΠ½ΡΡΡΡΠΌΠ΅Π½ΡΡ Π²ΠΊΠ»ΡΡΠ°ΡΡ ΡΠ°ΡΠΏΠΎΡΠΊΠΈ ΠΈ Π»ΠΎΠ±Π·ΠΈΠΊ. ΠΠ°ΠΌΠ΅Π½ΠΈΡΠ΅ ΠΌΠΎΠ»Π΄ΠΈΠ½Π³. ΠΠ°ΠΊΠΎΠ½ΡΠ΅Π½Π½ΡΠΉ!
ΠΠΎΡΠΈΠ½ΠΈΡΡ ΠΎΡΡΡΠΎΠΊΠΎΠ½Π΅ΡΠ½ΡΠ΅ Π΄ΠΎΡΠΊΠΈ
ΠΡΠ½ΠΎΠ²Π½Π°Ρ ΠΏΡΠΎΠ±Π»Π΅ΠΌΠ° — Π·Π°ΠΎΡΡΡΠ΅Π½ΠΈΠ΅. ΠΠ°ΠΊ ΡΠΎΠ»ΡΠΊΠΎ Π²Ρ ΡΡΡΡΠ°Π½ΠΈΡΠ΅ ΠΎΡΠ½ΠΎΠ²Π½ΡΡ ΠΏΡΠΎΠ±Π»Π΅ΠΌΡ, Π²Ρ ΠΌΠΎΠΆΠ΅ΡΠ΅ ΠΏΠΎΠ»ΠΎΠΆΠΈΡΡ Π½Π° ΠΊΠΎΠ·ΡΡΠ΅ΠΊ ΡΡΠΆΠ΅Π»ΡΠΉ ΠΏΡΠ΅Π΄ΠΌΠ΅Ρ Π½Π° Π½Π΅ΡΠΊΠΎΠ»ΡΠΊΠΎ Π΄Π½Π΅ΠΉ ΠΈΠ»ΠΈ Π΄ΠΎ ΡΠ΅Ρ ΠΏΠΎΡ, ΠΏΠΎΠΊΠ° Π΄ΠΎΡΠΊΠΈ Π½Π΅ Π²Π΅ΡΠ½ΡΡΡΡ Π½Π° ΡΠ²ΠΎΠΈ ΠΌΠ΅ΡΡΠ°.
ΠΠ°ΠΊ ΠΎΡΡΠ΅ΠΌΠΎΠ½ΡΠΈΡΠΎΠ²Π°ΡΡ Π»Π°ΠΌΠΈΠ½Π°Ρ: ΡΠΊΡΠΈΠΏΡΡΠΈΠ΅ ΠΏΠΎΠ»Ρ
ΠΠ°ΠΌΠΈΠ½Π°Ρ Ρ ΠΏΠΎΠ»Π½ΡΠΌ ΡΠ΅ΠΉΡΠΈΠ½Π³ΠΎΠΌ AC3 Π΄Π»Ρ ΠΈΡΠΏΠΎΠ»ΡΠ·ΠΎΠ²Π°Π½ΠΈΡ ΠΏΠΎ Π½Π°Π·Π½Π°ΡΠ΅Π½ΠΈΡ Ρ ΠΈΠ½ΡΠ΅Π½ΡΠΈΠ²Π½ΡΠΌ ΠΏΠ΅ΡΠ΅Ρ ΠΎΠ΄Π½ΡΠΌ Π΄Π²ΠΈΠΆΠ΅Π½ΠΈΠ΅ΠΌ.
ΠΠΎΠ»Π»Π΅ΠΊΡΠΈΡ Summa Lamton Laminate 12 ΠΌΠΌ ΠΈΠ· Π±Π΅ΡΡΡΡΠ°ΡΠ½ΠΎΠ³ΠΎ Π½ΠΈΠΊΠ΅Π»Ρ. ΠΡΡΠΈΠΊΡΠ»: 15263483Π₯ΠΎΡΡ ΡΠ»ΡΡΠ°ΠΉΠ½ΡΠ΅ ΡΠΊΡΠΈΠΏΡ ΠΈ ΡΡΠΎΠ½Ρ β ΡΡΠΎ Π½ΠΎΡΠΌΠ°Π»ΡΠ½ΠΎ, ΠΎΡΠΎΠ±Π΅Π½Π½ΠΎ Π² ΡΡΠ°ΡΡΡ Π΄ΠΎΠΌΠ°Ρ , ΡΠ΅Π³ΡΠ»ΡΡΠ½ΡΠ΅ ΡΡΠΌΡ ΡΠ°Π·Π΄ΡΠ°ΠΆΠ°ΡΡ ΠΈ ΠΌΠΎΠ³ΡΡ ΡΠΊΠ°Π·ΡΠ²Π°ΡΡ Π½Π° ΠΏΡΠΎΠ±Π»Π΅ΠΌΡ Ρ ΠΏΠΎΠ»ΠΎΠΌ. ΠΠ°ΠΌ Π½ΡΠΆΠ½ΠΎ Π±ΡΠ΄Π΅Ρ ΠΎΡΠ΅Π½ΠΈΡΡ ΡΠΈΡΡΠ°ΡΠΈΡ ΠΈ ΠΎΠΏΡΠ΅Π΄Π΅Π»ΠΈΡΡ, ΠΌΠΎΠΆΠ΅ΡΠ΅ Π»ΠΈ Π²Ρ ΠΈΡΠΏΡΠ°Π²ΠΈΡΡ Π΅Π΅ ΡΠ°ΠΌΠΎΡΡΠΎΡΡΠ΅Π»ΡΠ½ΠΎ ΠΈΠ»ΠΈ Π²Π°ΠΌ ΡΡΠ΅Π±ΡΠ΅ΡΡΡ ΠΏΡΠΎΡΠ΅ΡΡΠΈΠΎΠ½Π°Π»ΡΠ½Π°Ρ ΠΏΠΎΠΌΠΎΡΡ.
ΠΠ°ΠΌΠΈΠ½ΠΈΡΠΎΠ²Π°Π½Π½ΡΠΉ ΠΏΠΎΠ» ΠΠ΅ΡΠ΅Ρ ΠΎΠ΄ ΠΌΠ΅ΠΆΠ΄Ρ ΠΊΠΎΠΌΠ½Π°ΡΠ°ΠΌΠΈΠΡΠ»ΠΈ Π² Π²Π°ΡΠ΅ΠΌ Π΄ΠΎΠΌΠ΅ Π½Π΅Ρ ΠΎΠ΄ΠΈΠ½Π°ΠΊΠΎΠ²ΠΎΠ³ΠΎ Π»Π°ΠΌΠΈΠ½Π°ΡΠ° Π²ΠΎ Π²ΡΠ΅Ρ ΡΠΌΠ΅ΠΆΠ½ΡΡ ΠΊΠΎΠΌΠ½Π°ΡΠ°Ρ , Π²Ρ Π½Π°ΠΉΠ΄Π΅ΡΠ΅ ΠΏΠ΅ΡΠ΅Ρ ΠΎΠ΄Π½ΡΠ΅ Π·ΠΎΠ½Ρ, Π³Π΄Π΅ ΠΏΠΎΠ»ΠΎΠ²ΠΈΡΡ Π²ΡΡΡΠ΅ΡΠ°ΡΡΡΡ Ρ Π΄ΡΡΠ³ΠΈΠΌ ΡΠΈΠΏΠΎΠΌ ΠΏΠΎΠ»Π°.ΠΠ°ΠΏΡΠΈΠΌΠ΅Ρ, ΡΠ°ΠΌ, Π³Π΄Π΅ Π»Π°ΠΌΠΈΠ½Π°Ρ ΠΏΠ΅ΡΠ΅Ρ ΠΎΠ΄ΠΈΡ Π² ΠΏΠ»ΠΈΡΠΊΡ. ΠΡΠΈΡΠ΅ ΠΏΠ΅ΡΠ΅Ρ ΠΎΠ΄Π½ΡΠ΅ ΠΏΠΎΠ»ΠΎΡΡ Π½Π° ΠΏΠΎΠ»Ρ ΠΌΠ΅ΠΆΠ΄Ρ ΠΊΠΎΠΌΠ½Π°ΡΠ°ΠΌΠΈ β Π΄Π»ΠΈΠ½Π½ΡΠ΅ ΡΠΎΠ½ΠΊΠΈΠ΅ ΠΊΡΡΠΊΠΈ ΠΌΠ΅ΡΠ°Π»Π»Π° ΠΈΠ»ΠΈ Π΄Π΅ΡΠ΅Π²Π°, β ΠΊΠΎΡΠΎΡΡΠ΅ ΡΠΎΠ΅Π΄ΠΈΠ½ΡΡΡ ΠΎΠ΄Π½Ρ Π·ΠΎΠ½Ρ Ρ Π΄ΡΡΠ³ΠΎΠΉ. Π ΠΈΠ΄Π΅Π°Π»Π΅ ΠΎΠ½ΠΈ Π΄ΠΎΠ»ΠΆΠ½Ρ Π±ΡΡΡ Π½Π° Π²Π°ΡΠ΅ΠΌ ΡΡΠ°ΠΆΠ΅.
ΠΡΠ»ΠΈ Π’-ΠΎΠ±ΡΠ°Π·Π½ΡΡ
ΠΏΠ»Π°Π½ΠΎΠΊ Π½Π΅Ρ, ΠΏΡΠΎΠ²Π΅ΡΡΡΠ΅ ΠΊΠΎΠΌΠΏΠ΅Π½ΡΠ°ΡΠΈΠΎΠ½Π½ΡΠ΅ Π·Π°Π·ΠΎΡΡ Π² ΠΌΠ΅ΡΡΠ°Ρ
ΡΠΎΠ΅Π΄ΠΈΠ½Π΅Π½ΠΈΡ. ΠΠ°ΠΊ ΠΈ Π² ΡΠ»ΡΡΠ°Π΅ ΡΠΎ ΡΡΠ΅Π½Π°ΠΌΠΈ ΠΈ ΡΡΠ°ΡΠΈΠΎΠ½Π°ΡΠ½ΡΠΌΠΈ ΠΎΠ±ΡΠ΅ΠΊΡΠ°ΠΌΠΈ, Π»Π°ΠΌΠΈΠ½Π°Ρ Π½ΡΠΆΠ΄Π°Π΅ΡΡΡ Π² ΠΏΡΠΎΡΡΡΠ°Π½ΡΡΠ²Π΅ Π΄Π»Ρ ΡΠ°ΡΡΠΈΡΠ΅Π½ΠΈΡ ΠΈ ΡΠΆΠ°ΡΠΈΡ. ΠΡΠ»ΠΈ Π²Ρ Π½Π΅ Π²ΠΈΠ΄ΠΈΡΠ΅ Π·Π°Π·ΠΎΡΠ°, Π²Π°ΠΌ Π½ΡΠΆΠ½ΠΎ ΡΠ΄Π΅Π»Π°ΡΡ Π΅Π³ΠΎ, ΠΊΠ°ΠΊ ΡΠΊΠ°Π·Π°Π½ΠΎ Π²ΡΡΠ΅, Π° Π·Π°ΡΠ΅ΠΌ ΡΡΡΠ°Π½ΠΎΠ²ΠΈΡΡ Π’-ΠΎΠ±ΡΠ°Π·Π½ΡΡ ΠΏΠ»Π°Π½ΠΊΡ.
ΠΠΎΠ΄Π½ΠΈΠΌΠΈΡΠ΅ ΠΏΠΎΠ»
ΠΡΠΎΠ²Π΅ΡΡΡΠ΅ Π½Π°Π»ΠΈΡΠΈΠ΅ ΠΏΡΠΎΠ±Π»Π΅ΠΌ ΠΏΠΎΠ΄ ΠΏΠΎΠ²Π΅ΡΡ Π½ΠΎΡΡΡΡ, ΠΏΠΎΠ΄Π½ΡΠ² ΠΎΠ΄Π½Ρ ΠΈΠ»ΠΈ Π΄Π²Π΅ Π΄ΠΎΡΠΊΠΈ. ΠΡΡΡ Π»ΠΈ ΠΏΠΎΠ΄Π»ΠΎΠΆΠΊΠ° ΠΌΠ΅ΠΆΠ΄Ρ ΡΠ΅ΡΠ½ΡΠΌ ΠΏΠΎΠ»ΠΎΠΌ ΠΈ Π»Π°ΠΌΠΈΠ½Π°ΡΠΎΠΌ? ΠΡΠ»ΠΈ Π½Π΅Ρ, Π²Ρ ΠΌΠΎΠΆΠ΅ΡΠ΅ ΠΈΡΠΏΡΠ°Π²ΠΈΡΡ ΠΈΠ»ΠΈ, ΠΏΠΎ ΠΊΡΠ°ΠΉΠ½Π΅ΠΉ ΠΌΠ΅ΡΠ΅, ΡΠΌΡΠ³ΡΠΈΡΡ ΡΠΊΡΠΈΠΏΡΡΠΈΠ΅ Π·Π²ΡΠΊΠΈ, ΡΠ΄Π°Π»ΠΈΠ² ΠΏΠΎΠ»ΠΎΠ²ΡΠ΅ Π΄ΠΎΡΠΊΠΈ, Π΄ΠΎΠ±Π°Π²ΠΈΠ² Π²ΡΡΠΎΠΊΠΎΠΊΠ°ΡΠ΅ΡΡΠ²Π΅Π½Π½ΡΡ ΠΏΠΎΠ΄Π»ΠΎΠΆΠΊΡ ΠΈ ΠΏΠ΅ΡΠ΅ΡΡΡΠ°Π½ΠΎΠ²ΠΈΠ² Π΄ΠΎΡΠΊΠΈ. ΠΡΠΎΡ ΡΠ»Π΅ΠΌΠ΅Π½Ρ ΠΏΠΎΠ³Π»ΠΎΡΠ°Π΅Ρ Π·Π²ΡΠΊ ΠΈ ΡΠ²Π΅Π»ΠΈΡΠΈΠ²Π°Π΅Ρ Π΄ΠΎΠ»Π³ΠΎΠ²Π΅ΡΠ½ΠΎΡΡΡ Π²Π°ΡΠ΅Π³ΠΎ ΠΏΠΎΠ»Π°.
ΠΡΠΌΠΎΡΡΠΈΡΠ΅ ΡΠ΅ΡΠ½ΡΠΉ ΠΏΠΎΠ»
ΠΡΠ΅ ΠΎΠ΄Π½Π° Π²ΠΎΠ·ΠΌΠΎΠΆΠ½Π°Ρ ΠΏΡΠΎΠ±Π»Π΅ΠΌΠ° β Π½Π΅ΡΠΎΠ²Π½ΡΠΉ ΠΈΠ»ΠΈ ΠΏΠΎΠ²ΡΠ΅ΠΆΠ΄Π΅Π½Π½ΡΠΉ ΡΠ΅ΡΠ½ΡΠΉ ΠΏΠΎΠ».ΠΡΠΈΡΠ΅ ΠΏΡΠΎΠ²Π°Π»Ρ ΠΈ Π±ΡΠ³ΡΡ Π½Π° ΠΏΠΎΠ»Ρ ΠΈΠ»ΠΈ ΡΡΠ°ΡΡΠΊΠΈ, ΠΊΠΎΡΠΎΡΡΠ΅ ΠΊΠ°ΠΆΡΡΡΡ Π³ΡΠ±ΡΠ°ΡΡΠΌΠΈ. ΠΠ΅ Π·Π°Π±ΡΠ΄ΡΡΠ΅ ΡΠ°ΠΊΠΆΠ΅ ΠΏΡΠΎΠ²Π΅ΡΠΈΡΡ ΠΏΠΎΠ΄ Π»ΡΠ±ΡΠΌΠΈ ΠΊΠΎΠ²ΡΠ°ΠΌΠΈ ΠΈΠ»ΠΈ ΠΌΠ΅Π±Π΅Π»ΡΡ. ΠΡΠ»ΠΈ Π²Ρ ΠΏΠΎΠ΄ΠΎΠ·ΡΠ΅Π²Π°Π΅ΡΠ΅, ΡΡΠΎ Π²Π°Ρ ΡΠ΅ΡΠ½ΡΠΉ ΠΏΠΎΠ» Π³Π½ΠΈΠ΅Ρ ΠΈΠ»ΠΈ Π½Π΅ΡΠΎΠ²Π½ΡΠΉ, Π²Π°ΠΌ ΡΠ»Π΅Π΄ΡΠ΅Ρ ΠΎΠ±ΡΠ°ΡΠΈΡΡΡΡ ΠΊ ΡΠΏΠ΅ΡΠΈΠ°Π»ΠΈΡΡΡ ΠΏΠΎ Π½Π°ΠΏΠΎΠ»ΡΠ½ΡΠΌ ΠΏΠΎΠΊΡΡΡΠΈΡΠΌ.
ΠΠ°ΠΊ ΠΎΡΡΠ΅ΠΌΠΎΠ½ΡΠΈΡΠΎΠ²Π°ΡΡ Π»Π°ΠΌΠΈΠ½Π°Ρ: ΠΊΠΎΡΠΎΠ±Π»Π΅Π½ΠΈΠ΅ ΠΈΠ»ΠΈ Π΄Π΅ΡΠΎΡΠΌΠ°ΡΠΈΡ
ΠΡ ΠΏΠΎΠΉΠΌΠ΅ΡΠ΅, ΡΡΠΎ ΠΏΠΎΠ»ΠΎΠ²ΠΈΡΡ ΠΈΡΠΊΡΠΈΠ²Π»Π΅Π½Ρ, Π΅ΡΠ»ΠΈ ΠΎΠ½ΠΈ ΠΈΠ·ΠΎΠ³Π½ΡΡΡ Π²Π½ΡΡΡΡ, ΠΊΠ°ΠΊ Π²Π½ΡΡΡΠ΅Π½Π½ΡΡ ΡΠ°ΡΡΡ ΡΠ°ΡΠΈ. Π‘ ΠΊΠΎΡΠΎΠ±Π»Π΅Π½ΠΈΠ΅ΠΌ Π²ΡΠ΅ Π½Π°ΠΎΠ±ΠΎΡΠΎΡ β ΠΏΠΎΠ»ΠΎΠ²ΠΈΡΡ Π½Π°ΠΏΠΎΠΌΠΈΠ½Π°ΡΡ Π°ΡΠΊΡ ΠΈΠ»ΠΈ ΠΏΠ΅ΡΠ΅Π²Π΅ΡΠ½ΡΡΡΡ ΡΠ°ΡΡ. ΠΠΎΠ²ΡΠ΅ΠΆΠ΄Π΅Π½ΠΈΠ΅ Π²ΠΎΠ΄ΠΎΠΉ ΠΈΠ»ΠΈ ΠΊΠΎΠ»Π΅Π±Π°Π½ΠΈΡ ΡΠ΅ΠΌΠΏΠ΅ΡΠ°ΡΡΡΡ ΡΠ²Π»ΡΡΡΡΡ Π½Π°ΠΈΠ±ΠΎΠ»Π΅Π΅ ΡΠ°ΡΠΏΡΠΎΡΡΡΠ°Π½Π΅Π½Π½ΡΠΌΠΈ ΠΏΡΠΈΡΠΈΠ½Π°ΠΌΠΈ ΠΊΠΎΡΠΎΠ±Π»Π΅Π½ΠΈΡ ΠΈ ΠΊΠΎΡΠΎΠ±Π»Π΅Π½ΠΈΡ.
ΠΡΠ»ΠΈ Π²Ρ ΡΠ΅ΡΠΈΡΠ΅ ΠΏΡΠΎΠ±Π»Π΅ΠΌΡ Π΄ΠΎΡΡΠ°ΡΠΎΡΠ½ΠΎ Π±ΡΡΡΡΠΎ, Π²Ρ, ΠΊΠ°ΠΊ ΠΏΡΠ°Π²ΠΈΠ»ΠΎ, ΡΠΌΠΎΠΆΠ΅ΡΠ΅ ΠΏΡΠ΅Π΄ΠΎΡΠ²ΡΠ°ΡΠΈΡΡ ΡΠ°ΡΠΏΡΠΎΡΡΡΠ°Π½Π΅Π½ΠΈΠ΅ ΠΏΡΠΎΠ±Π»Π΅ΠΌ Ρ Π»Π°ΠΌΠΈΠ½Π°ΡΠΎΠΌ.
ΠΡΠΈΡΠ΅ ΠΏΠΎΠ²ΡΠ΅ΠΆΠ΄Π΅Π½ΠΈΡ Π²ΠΎΠ΄ΠΎΠΉ
ΠΡΠΈΡΠΈΠ½Ρ ΠΏΠΎΠ²ΡΠ΅ΠΆΠ΄Π΅Π½ΠΈΡ Π²ΠΎΠ΄ΠΎΠΉ Π²ΠΊΠ»ΡΡΠ°ΡΡ:
- Π‘ΡΠΎΡΡΠ°Ρ Π²ΠΎΠ΄Π°. ΠΡΠΎ ΠΌΠΎΠΆΠ΅Ρ ΠΏΡΠΎΠΈΠ·ΠΎΠΉΡΠΈ ΠΈΠ·-Π·Π° ΠΏΡΠΎΡΠ΅ΡΠΊΠΈ Π²ΠΎΠ΄ΠΎΠΏΡΠΎΠ²ΠΎΠ΄Π°, ΠΏΠ΅ΡΠ΅ΠΏΠΎΠ»Π½Π΅Π½ΠΈΡ ΠΏΠΎΡΡΠ΄ΠΎΠΌΠΎΠ΅ΡΠ½ΠΎΠΉ ΠΌΠ°ΡΠΈΠ½Ρ ΠΈΠ»ΠΈ ΡΠ»ΠΈΡΠΊΠΎΠΌ Π±ΠΎΠ»ΡΡΠΎΠ³ΠΎ ΠΊΠΎΠ»ΠΈΡΠ΅ΡΡΠ²Π° Π²ΠΎΠ΄Ρ ΠΏΡΠΈ ΠΌΡΡΡΠ΅ ΠΏΠΎΠ»ΠΎΠ².
- ΠΡΡΠΎΠΊΠ°Ρ Π²Π»Π°ΠΆΠ½ΠΎΡΡΡ.
- ΠΠ»Π°Π³Π° ΠΎΡ ΡΠ΅ΡΠ½ΠΎΠ²ΠΎΠ³ΠΎ ΠΏΠΎΠ»Π°.
ΠΠ΅ΡΠ²ΡΠ΅ Π΄Π²Π° ΠΈΡΡΠΎΡΠ½ΠΈΠΊΠ° Π΄ΠΎΡΡΠ°ΡΠΎΡΠ½ΠΎ Π»Π΅Π³ΠΊΠΎ Π΄ΠΈΠ°Π³Π½ΠΎΡΡΠΈΡΠΎΠ²Π°ΡΡ. Π§ΡΠΎΠ±Ρ ΠΏΡΠΎΠ²Π΅ΡΠΈΡΡ ΡΠ²ΠΎΠΉ ΡΠ΅ΡΠ½ΡΠΉ ΠΏΠΎΠ», ΠΏΠΎΠ΄Π½ΠΈΠΌΠΈΡΠ΅ ΠΏΠΎΠ»ΠΎΠ²ΠΈΡΡ ΠΈ ΠΏΠΎΡΠΌΠΎΡΡΠΈΡΠ΅ Π½Π° Π½Π°Π»ΠΈΡΠΈΠ΅ Π²Π»Π°Π³ΠΈ ΠΈΠ»ΠΈ ΠΏΡΠΈΠ·Π½Π°ΠΊΠΎΠ² ΠΏΠ»Π΅ΡΠ΅Π½ΠΈ.ΠΡΠΎΠΌΠ΅ ΡΠΎΠ³ΠΎ, ΠΏΡΠΎΠ²Π΅ΡΡΡΠ΅ Π½Π°Π»ΠΈΡΠΈΠ΅ ΠΏΠΎΠ΄Π»ΠΎΠΆΠΊΠΈ; Π΅Π³ΠΎ ΠΎΡΡΡΡΡΡΠ²ΠΈΠ΅ Π΄Π΅Π»Π°Π΅Ρ Π²Π°Ρ Π»Π°ΠΌΠΈΠ½ΠΈΡΠΎΠ²Π°Π½Π½ΡΠΉ ΠΏΠΎΠ» Π²ΠΎΡΠΏΡΠΈΠΈΠΌΡΠΈΠ²ΡΠΌ ΠΊ Π²Π»Π°Π³Π΅.
ΠΡΠΈΡΠ΅ Π·Π°Π·ΠΎΡΡ ΡΠ°ΡΡΠΈΡΠ΅Π½ΠΈΡ
ΠΡΡΡΡΡΡΠ²ΠΈΠ΅ Π½Π°Π΄Π»Π΅ΠΆΠ°ΡΠΈΡ ΠΊΠΎΠΌΠΏΠ΅Π½ΡΠ°ΡΠΈΠΎΠ½Π½ΡΡ Π·Π°Π·ΠΎΡΠΎΠ² ΠΌΠΎΠΆΠ΅Ρ ΠΏΡΠΈΠ²Π΅ΡΡΠΈ Π½Π΅ ΡΠΎΠ»ΡΠΊΠΎ ΠΊ Π²ΡΡΡΡΠΏΠ°Π½ΠΈΡ ΠΈ ΡΠΊΡΠΈΠΏΡ ΠΏΠΎΠ»Π°, Π½ΠΎ ΠΈ ΠΊ ΠΊΠΎΡΠΎΠ±Π»Π΅Π½ΠΈΡ ΠΈ ΠΊΠΎΡΠΎΠ±Π»Π΅Π½ΠΈΡ ΠΏΠΎΠ»ΠΎΠ²ΠΈΡ. ΠΡΠ»ΠΈ Π±ΠΎΠ»ΡΡΠ°Ρ ΡΠ°ΡΡΡ ΠΏΠΎΠ²ΡΠ΅ΠΆΠ΄Π΅Π½ΠΈΠΉ ΠΏΡΠΈΡ ΠΎΠ΄ΠΈΡΡΡ Π½Π° ΡΡΠ΅Π½Ρ, Π²Π°ΡΠ° ΠΏΡΠΎΠ±Π»Π΅ΠΌΠ°, ΡΠΊΠΎΡΠ΅Π΅ Π²ΡΠ΅Π³ΠΎ, ΡΠ²ΡΠ·Π°Π½Π° Ρ ΠΎΠ΄Π½ΠΎΠΉ ΠΈΠ· ΡΠ»Π΅Π΄ΡΡΡΠΈΡ ΠΎΡΠΈΠ±ΠΎΠΊ ΡΡΡΠ°Π½ΠΎΠ²ΠΊΠΈ:
- ΠΡΡΡΡΡΡΠ²ΠΈΠ΅ Π°ΠΊΠΊΠ»ΠΈΠΌΠ°ΡΠΈΠ·Π°ΡΠΈΠΈ ΠΏΠΎΠ»Π° Π² Π΄ΠΎΠΌΠ΅ ΠΏΠ΅ΡΠ΅Π΄ ΡΠΊΠ»Π°Π΄ΠΊΠΎΠΉ.

- ΠΠ΅ ΠΎΡΡΠ°Π²Π»ΡΡ ΠΊΠΎΠΌΠΏΠ΅Π½ΡΠ°ΡΠΈΠΎΠ½Π½ΡΡ Π·Π°Π·ΠΎΡΠΎΠ² ΠΌΠ΅ΠΆΠ΄Ρ ΠΏΠΎΠ»ΠΎΠ²ΠΈΡΠ°ΠΌΠΈ ΠΈ ΡΡΠ΅Π½Π°ΠΌΠΈ, ΡΡΠ°ΡΠΈΠΎΠ½Π°ΡΠ½ΡΠΌΠΈ ΠΎΠ±ΡΠ΅ΠΊΡΠ°ΠΌΠΈ ΠΈΠ»ΠΈ ΠΏΠ΅ΡΠ΅Ρ ΠΎΠ΄Π½ΡΠΌΠΈ Π·ΠΎΠ½Π°ΠΌΠΈ.
Π Π»ΡΠ±ΠΎΠΌ ΡΠ»ΡΡΠ°Π΅ ΡΠΎΠ·Π΄Π°Π½ΠΈΠ΅ Π·Π°Π·ΠΎΡΠΎΠ² ΡΠ°ΡΡΠΈΡΠ΅Π½ΠΈΡ Π΄ΠΎΠ»ΠΆΠ½ΠΎ ΡΠ΅ΡΠΈΡΡ ΠΏΡΠΎΠ±Π»Π΅ΠΌΡ.
Π£ΡΡΡΠ°Π½Π΅Π½ΠΈΠ΅ ΠΎΡΠ½ΠΎΠ²Π½ΠΎΠΉ ΠΏΡΠΈΡΠΈΠ½Ρ
ΠΡΠ΅ΠΆΠ΄Π΅ ΡΠ΅ΠΌ Π·Π°ΠΌΠ΅Π½ΠΈΡΡ ΠΏΠΎΠ²ΡΠ΅ΠΆΠ΄Π΅Π½Π½ΡΠ΅ ΠΏΠΎΠ»ΠΎΠ²ΠΈΡΡ, Π½Π΅ΠΎΠ±Ρ ΠΎΠ΄ΠΈΠΌΠΎ ΡΡΡΡΠ°Π½ΠΈΡΡ ΠΎΡΠ½ΠΎΠ²Π½ΡΡ ΠΏΡΠΈΡΠΈΠ½Ρ. ΠΡΠ° Π·Π°Π΄Π°ΡΠ° ΠΌΠΎΠΆΠ΅Ρ Π²ΠΊΠ»ΡΡΠ°ΡΡ:
- Π Π΅ΡΠ΅Π½ΠΈΠ΅ Π»ΡΠ±ΡΡ ΠΏΡΠΎΠ±Π»Π΅ΠΌ Ρ ΡΠ°Π½ΡΠ΅Ρ Π½ΠΈΠΊΠΎΠΉ.
- ΠΡΠΈΠΎΠ±ΡΠ΅ΡΠ΅Π½ΠΈΠ΅ ΠΏΠΎΠ΄Π»ΠΎΠΆΠΊΠΈ.
- Π‘ΠΎΠ·Π΄Π°Π½ΠΈΠ΅ ΠΊΠΎΠΌΠΏΠ΅Π½ΡΠ°ΡΠΈΠΎΠ½Π½ΡΡ Π·Π°Π·ΠΎΡΠΎΠ².
- ΠΡΠΈΠΎΠ±ΡΠ΅ΡΠ΅Π½ΠΈΠ΅ Π½Π°ΠΏΠΎΠ»ΡΠ½ΠΎΠ³ΠΎ ΠΏΠΎΠΊΡΡΡΠΈΡ Π±ΠΎΠ»Π΅Π΅ Π²ΡΡΠΎΠΊΠΎΠ³ΠΎ ΠΊΠ°ΡΠ΅ΡΡΠ²Π° Ρ ΡΠΈΠ»ΡΠ½ΡΠΌ Π±Π°ΡΡΠ΅ΡΠΎΠΌ Π΄Π»Ρ Π²Π»Π°Π³ΠΈ. Π₯ΠΎΡΡ Π² ΡΡΠΎΠΌ ΡΠ°Π³Π΅ Π½Π΅Ρ Π½Π΅ΠΎΠ±Ρ ΠΎΠ΄ΠΈΠΌΠΎΡΡΠΈ, Π²Ρ ΠΌΠΎΠΆΠ΅ΡΠ΅ ΡΠ°ΡΡΠΌΠΎΡΡΠ΅ΡΡ Π΅Π³ΠΎ, Π΅ΡΠ»ΠΈ Ρ Π²Π°Ρ Π΄Π΅ΡΠ΅Π²ΠΎΠ΅, Π½Π΅ΠΊΠ°ΡΠ΅ΡΡΠ²Π΅Π½Π½ΠΎΠ΅ Π½Π°ΠΏΠΎΠ»ΡΠ½ΠΎΠ΅ ΠΏΠΎΠΊΡΡΡΠΈΠ΅, Π½Π΅ ΠΈΠΌΠ΅ΡΡΠ΅Π΅ Π½Π°Π΄Π»Π΅ΠΆΠ°ΡΠ΅Π³ΠΎ Π±Π°ΡΡΠ΅ΡΠ° Π΄Π»Ρ Π²Π»Π°Π³ΠΈ.
ΠΠ°ΠΌΠ΅Π½Π° ΠΏΠΎΠ²ΡΠ΅ΠΆΠ΄Π΅Π½Π½ΡΡ ΠΏΠΎΠ»ΠΎΠ²ΠΈΡ
ΠΡ ΠΏΠΎΡΡΠΈ Π·Π°ΠΊΠΎΠ½ΡΠΈΠ»ΠΈ ΡΠ°Π±ΠΎΡΡ! ΠΡΠΎΡΡΠΎ Π²ΡΠΏΠΎΠ»Π½ΠΈΡΠ΅ ΡΡΠΈ ΠΏΠΎΡΠ»Π΅Π΄Π½ΠΈΠ΅ ΡΠ°Π³ΠΈ:
- ΠΠ°ΠΉΠ΄ΠΈΡΠ΅ Π±Π»ΠΈΠΆΠ°ΠΉΡΡΡ ΡΡΠ΅Π½Ρ ΠΈ ΡΠ½ΠΈΠΌΠΈΡΠ΅ ΠΌΠΎΠ»Π΄ΠΈΠ½Π³.
- ΠΡΡΠΎΠ΅Π΄ΠΈΠ½ΠΈΡΠ΅ ΠΈ ΡΠ΄Π°Π»ΠΈΡΠ΅ Π²ΡΠ΅ Π΄ΠΎΡΠΊΠΈ, ΠΏΠΎΠΊΠ° Π½Π΅ Π΄ΠΎΠΉΠ΄Π΅ΡΠ΅ Π΄ΠΎ ΠΏΠΎΠ²ΡΠ΅ΠΆΠ΄Π΅Π½Π½ΠΎΠ³ΠΎ ΡΡΠ°ΡΡΠΊΠ°.

- Π ΡΠ»ΡΡΠ°Π΅ ΠΏΠΎΠ²ΡΠ΅ΠΆΠ΄Π΅Π½ΠΈΡ Π²ΠΎΠ΄ΠΎΠΉ Π΄Π°ΠΉΡΠ΅ ΡΡΠ°ΡΡΠΊΡ ΠΏΠΎΠ»Π½ΠΎΡΡΡΡ Π²ΡΡΠΎΡ Π½ΡΡΡ.
- Π£ΡΡΡΠ°Π½ΠΈΡΠ΅ Π»ΡΠ±ΡΡ ΠΏΠ»Π΅ΡΠ΅Π½Ρ Π½Π° ΡΠ΅ΡΠ½ΠΎΠ²ΠΎΠΌ ΠΏΠΎΠ»Ρ. Π₯ΠΎΡΠΎΡΠ΅ΠΉ ΠΈΠ΄Π΅Π΅ΠΉ Π±ΡΠ΄Π΅Ρ ΠΎΠ±ΡΠ°ΡΠΈΡΡΡΡ ΠΊ ΡΠΏΠ΅ΡΠΈΠ°Π»ΠΈΡΡΡ ΠΏΠΎ ΡΠ΄Π°Π»Π΅Π½ΠΈΡ ΠΏΠ»Π΅ΡΠ΅Π½ΠΈ.
- ΠΠΎΠ³Π΄Π° ΡΠ΅ΡΠ½ΠΎΠ²ΠΎΠΉ ΠΏΠΎΠ» Π²ΡΡΠΎΡ Π½Π΅Ρ ΠΈ Π²ΡΡΠΈΡΡΠΈΡΡΡ, ΠΌΠΎΠΆΠ½ΠΎ ΡΠΊΠ»Π°Π΄ΡΠ²Π°ΡΡ Π½ΠΎΠ²ΡΠ΅ ΠΏΠΎΠ»ΠΎΠ²ΠΈΡΡ.
- Π£ΡΡΠ°Π½ΠΎΠ²ΠΈΡΠ΅ Π½Π° ΠΌΠ΅ΡΡΠΎ Π»Π°ΠΌΠΈΠ½Π°Ρ.
- Π£ΡΡΠ°Π½ΠΎΠ²ΠΈΡΠ΅ ΠΌΠΎΠ»Π΄ΠΈΠ½Π³ Π½Π° ΠΌΠ΅ΡΡΠΎ.
ΠΠ°ΠΌ Π½Π΅ Π½ΡΠΆΠ½ΠΎ ΠΏΠΎΠ»Π½ΠΎΡΡΡΡ ΡΠ½ΠΈΠΌΠ°ΡΡ Π½Π°ΠΏΠΎΠ»ΡΠ½ΠΎΠ΅ ΠΏΠΎΠΊΡΡΡΠΈΠ΅, Π΅ΡΠ»ΠΈ ΡΠΎΠ»ΡΠΊΠΎ ΠΏΠΎΠ²ΡΠ΅ΠΆΠ΄Π΅Π½ΠΈΠ΅ Π½Π΅ ΡΠ²Π»ΡΠ΅ΡΡΡ Π·Π½Π°ΡΠΈΡΠ΅Π»ΡΠ½ΡΠΌ ΠΈΠ»ΠΈ Π΅ΡΠ»ΠΈ Π²Ρ Ρ ΠΎΡΠΈΡΠ΅ Π΄ΠΎΠ±Π°Π²ΠΈΡΡ Π±ΠΎΠ»Π΅Π΅ ΠΊΠ°ΡΠ΅ΡΡΠ²Π΅Π½Π½ΡΠ΅ ΠΏΠΎΠ»ΠΎΠ²ΠΈΡΡ ΠΈΠ»ΠΈ ΠΏΠΎΠ΄Π»ΠΎΠΆΠΊΡ. ΠΡΠ»ΠΈ Π²Ρ ΠΏΠΎΠ²ΡΠ΅Π΄ΠΈΠ»ΠΈ ΠΏΠΎΠ»ΠΎΠ²ΠΈΡΡ Π»Π°ΠΌΠΈΠ½Π°ΡΠ° ΠΏΠΎΡΡΠ΅Π΄ΠΈ Π±ΠΎΠ»ΡΡΠΎΠΉ ΠΊΠΎΠΌΠ½Π°ΡΡ, Π²Ρ ΠΌΠΎΠΆΠ΅ΡΠ΅ ΠΏΡΠ΅Π΄ΠΏΠΎΡΠ΅ΡΡΡ Π½Π°Π½ΡΡΡ ΡΠΏΠ΅ΡΠΈΠ°Π»ΠΈΡΡΠ° ΠΏΠΎ Π½Π°ΠΏΠΎΠ»ΡΠ½ΡΠΌ ΠΏΠΎΠΊΡΡΡΠΈΡΠΌ.
ΠΠ½Π°Π½ΠΈΠ΅ ΡΠΎΠ³ΠΎ, ΠΊΠ°ΠΊ ΡΠ΅ΠΌΠΎΠ½ΡΠΈΡΠΎΠ²Π°ΡΡ Π»Π°ΠΌΠΈΠ½Π°Ρ, β ΡΡΠΎ ΠΎΡΠ»ΠΈΡΠ½ΡΠΉ Π½Π°Π²ΡΠΊ, ΠΊΠΎΡΠΎΡΡΠΉ Π½ΡΠΆΠ½ΠΎ ΠΈΠΌΠ΅ΡΡ Π·Π° ΠΏΠ»Π΅ΡΠ°ΠΌΠΈ. Π ΡΠ»ΡΡΠ°Π΅ ΡΠ΅ΡΡΠ΅Π·Π½ΠΎΠ³ΠΎ ΠΏΠΎΠ²ΡΠ΅ΠΆΠ΄Π΅Π½ΠΈΡ Π²Ρ Π΄ΠΎΠ»ΠΆΠ½Ρ ΠΎΡΡΠ°Π²Π°ΡΡΡΡ Π² Π±Π΅Π·ΠΎΠΏΠ°ΡΠ½ΠΎΡΡΠΈ ΠΈ ΠΎΠ±ΡΠ°ΡΠΈΡΡΡΡ ΠΊ ΠΏΡΠΎΡΠ΅ΡΡΠΈΠΎΠ½Π°Π»Ρ.ΠΠ΄Π½Π°ΠΊΠΎ Π±ΠΎΠ»ΡΡΠΈΠ½ΡΡΠ²ΠΎ ΠΏΡΠΎΠ±Π»Π΅ΠΌ ΠΌΠΎΠΆΠ½ΠΎ ΡΠ΅ΡΠΈΡΡ ΡΠ°ΠΌΠΎΡΡΠΎΡΡΠ΅Π»ΡΠ½ΠΎ ΠΈΠ»ΠΈ Ρ ΠΏΠΎΠΌΠΎΡΡΡ Π΄ΡΡΠ³Π°.
ΠΠ°ΠΊΠ°Π· ΠΎΠ±ΡΠ°Π·ΡΠΎΠ² Π±Π΅ΡΠΏΠ»Π°ΡΠ½ΠΎ
ΠΠΎΠ»ΡΡΠΈΡΠ΅ 5 Π±Π΅ΡΠΏΠ»Π°ΡΠ½ΡΡ
ΠΎΠ±ΡΠ°Π·ΡΠΎΠ².
ΠΡΠ΅Π΄ΠΈΡΠ½Π°Ρ ΠΊΠ°ΡΡΠ° Π½Π΅ ΡΡΠ΅Π±ΡΠ΅ΡΡΡ.
ΠΠ±ΡΠ°Π·ΡΡ ΠΎΡΠΏΡΠ°Π²Π»Π΅Π½Ρ ΠΏΡΡΠΌΠΎ ΠΊ Π²Π°ΡΠ΅ΠΉ Π΄Π²Π΅ΡΠΈ.
3 ΡΠΏΠΎΡΠΎΠ±Π° ΡΠ΅ΠΌΠΎΠ½ΡΠ° Π»Π°ΠΌΠΈΠ½Π°ΡΠ°
ΠΠ± ΡΡΠΎΠΉ ΡΡΠ°ΡΡΠ΅
Π ΡΠΎΠ°Π²ΡΠΎΡΡΡΠ²Π΅:
Π‘ΠΏΠ΅ΡΠΈΠ°Π»ΠΈΡΡ ΠΏΠΎ Π±Π»Π°Π³ΠΎΡΡΡΡΠΎΠΉΡΡΠ²Ρ Π΄ΠΎΠΌΠ°
ΠΡΠ° ΡΡΠ°ΡΡΡ Π±ΡΠ»Π° Π½Π°ΠΏΠΈΡΠ°Π½Π° Π² ΡΠΎΠ°Π²ΡΠΎΡΡΡΠ²Π΅ Ρ ΠΠ΅Π²ΠΈΠ½ΠΎΠΌ Π¨Π»ΠΎΡΡΠ΅ΡΠΎΠΌ.ΠΠ΅Π²ΠΈΠ½ Π¨Π»ΠΎΡΡΠ΅Ρ β ΡΠΏΠ΅ΡΠΈΠ°Π»ΠΈΡΡ ΠΏΠΎ Π±Π»Π°Π³ΠΎΡΡΡΡΠΎΠΉΡΡΠ²Ρ Π΄ΠΎΠΌΠ° ΠΈ Π²Π»Π°Π΄Π΅Π»Π΅Ρ ΠΊΠΎΠΌΠΏΠ°Π½ΠΈΠΈ Home Tech Handyman Ltd. ΠΠ±Π»Π°Π΄Π°Ρ Π±ΠΎΠ»Π΅Π΅ ΡΠ΅ΠΌ 20-Π»Π΅ΡΠ½ΠΈΠΌ ΠΎΠΏΡΡΠΎΠΌ, ΠΠ΅Π²ΠΈΠ½ ΡΠΏΠ΅ΡΠΈΠ°Π»ΠΈΠ·ΠΈΡΡΠ΅ΡΡΡ Π½Π° ΠΌΠΎΠ½ΡΠ°ΠΆΠ΅ ΡΡΡΠ°ΡΠ΅Π²ΡΠΈΡ ΠΊΠΎΠ½ΡΡΡΡΠΊΡΠΈΠΉ, Π½Π°ΡΡΠΈΠ»Π΅ ΠΏΠΎΠ»ΠΎΠ², ΠΊΡΠΎΠ²Π»Π΅ ΠΈ ΡΡΠ»ΡΠ³Π°Ρ ΡΠ°Π·Π½ΠΎΡΠ°Π±ΠΎΡΠ΅Π³ΠΎ ΠΏΠΎ ΠΎΠ±ΡΠ΅ΠΌΡ ΡΠ΅ΠΌΠΎΠ½ΡΡ. ΠΠ΅Π²ΠΈΠ½ ΠΈΠΌΠ΅Π΅Ρ ΡΡΠ΄ ΡΠ΅ΡΡΠΈΡΠΈΠΊΠ°ΡΠΎΠ², ΡΠ²ΡΠ·Π°Π½Π½ΡΡ ΡΠΎ ΡΡΡΠΎΠΈΡΠ΅Π»ΡΡΡΠ²ΠΎΠΌ ΠΈ Π΄ΠΎΠΌΠ°ΡΠ½ΠΈΠΌΠΈ ΡΠ΅Ρ Π½ΠΎΠ»ΠΎΠ³ΠΈΡΠΌΠΈ, Π²ΠΊΠ»ΡΡΠ°Ρ ΡΠ΅ΡΡΠΈΡΠΈΠΊΠ°Ρ NAHB Certified Age-in-Place Specialist, ΡΠ»Π΅Π½ΡΡΠ²ΠΎ ΠΈ ΡΠ΅ΡΡΠΈΡΠΈΠΊΠ°ΡΡ CEDIA, Π° ΡΠ°ΠΊΠΆΠ΅ ΡΠ΅ΡΡΠΈΡΠΈΠΊΠ°Ρ ΠΎΡ Association of Certified Handyman Professionals. ΠΡΠΎΠΌΠ΅ ΡΠΎΠ³ΠΎ, ΠΎΠ½ ΠΏΡΠΎΡ ΠΎΠ΄ΠΈΡ ΠΎΠ±ΡΡΠ΅Π½ΠΈΠ΅ Π΄Π»Ρ ΠΏΠΎΠ»ΡΡΠ΅Π½ΠΈΡ ΡΠ΅ΡΡΠΈΡΠΈΠΊΠ°ΡΠΎΠ² Π² ΠΎΠ±Π»Π°ΡΡΠΈ ΡΡΡΠΎΠΈΡΠ΅Π»ΡΡΡΠ²Π°, ΡΠΏΡΠ°Π²Π»Π΅Π½ΠΈΡ ΠΏΡΠΎΠ΅ΠΊΡΠ°ΠΌΠΈ ΠΈ Π΄ΡΡΠ³ΠΈΡ ΡΠ΅ΡΡΠΈΡΠΈΠΊΠ°ΡΠΎΠ² ΡΠ΅ΡΡΠΈΡΠΈΡΠΈΡΠΎΠ²Π°Π½Π½ΠΎΠ³ΠΎ ΡΠΈΡΡΠ΅ΠΌΠ½ΠΎΠ³ΠΎ ΠΈΠ½ΡΠ΅Π³ΡΠ°ΡΠΎΡΠ° CEDIA.
ΠΠ½ ΠΏΠΎΠ»Π½ΠΎΡΡΡΡ Π·Π°ΡΡΡΠ°Ρ
ΠΎΠ²Π°Π½ Π² ΡΡΠ°ΡΠ΅ ΠΠΎΠ»ΠΎΡΠ°Π΄ΠΎ. ΠΡΠ° ΡΡΠ°ΡΡΡ Π±ΡΠ»Π° ΠΏΡΠΎΡΠΌΠΎΡΡΠ΅Π½Π° 390 743 ΡΠ°Π·Π°.Π‘ΠΎΠ°Π²ΡΠΎΡΡ: 14
ΠΠ±Π½ΠΎΠ²Π»Π΅Π½ΠΎ: 24 ΠΌΠ°Ρ 2021 Π³.
ΠΡΠΎΡΠΌΠΎΡΡΠΎΠ²:Β 390Β 743
Π Π΅Π·ΡΠΌΠ΅ ΡΡΠ°ΡΡΠΈXΠΠ°ΠΌΠΈΠ½ΠΈΡΠΎΠ²Π°Π½Π½ΡΠ΅ Π½Π°ΠΏΠΎΠ»ΡΠ½ΡΠ΅ ΠΏΠΎΠΊΡΡΡΠΈΡ ΠΏΡΠΈΠ²Π»Π΅ΠΊΠ°ΡΠ΅Π»ΡΠ½Ρ ΠΈ ΠΏΡΠΎΡΡΡ Π² ΡΠΊΠ»Π°Π΄ΠΊΠ΅, Π½ΠΎ ΡΠΎ Π²ΡΠ΅ΠΌΠ΅Π½Π΅ΠΌ Π½Π° Π½ΠΈΡ ΠΌΠΎΠ³ΡΡ ΠΏΠΎΡΠ²ΠΈΡΡΡΡ ΡΠ°ΡΠ°ΠΏΠΈΠ½Ρ, ΡΠΊΠΎΠ»Ρ ΠΈΠ»ΠΈ ΠΏΠΎΠ²ΡΠ΅ΠΆΠ΄Π΅Π½ΠΈΡ Π²ΠΎΠ΄ΠΎΠΉ. ΠΡΠ»ΠΈ Π²Π°ΠΌ Π½ΡΠΆΠ½ΠΎ ΡΡΡΡΠ°Π½ΠΈΡΡ ΠΌΠ΅Π»ΠΊΠΈΠ΅ ΡΠ°ΡΠ°ΠΏΠΈΠ½Ρ ΠΈΠ»ΠΈ ΡΠΊΠΎΠ»Ρ, ΠΏΡΠΈΠΎΠ±ΡΠ΅ΡΠΈΡΠ΅ Π½Π°Π±ΠΎΡ Π΄Π»Ρ ΡΠ΅ΠΌΠΎΠ½ΡΠ° Π»Π°ΠΌΠΈΠ½Π°ΡΠ°, ΠΊΠΎΡΠΎΡΡΠΉ ΡΠΎΠΎΡΠ²Π΅ΡΡΡΠ²ΡΠ΅Ρ ΡΠ²Π΅ΡΡ Π²Π°ΡΠ΅Π³ΠΎ ΠΏΠΎΠ»Π°.ΠΠ°ΠΌ Π½ΡΠΆΠ½ΠΎ Π±ΡΠ΄Π΅Ρ ΠΎΡΠΈΡΡΠΈΡΡ ΠΎΠ±Π»Π°ΡΡΡ Π²ΠΎΠΊΡΡΠ³ ΡΠ°ΡΠ°ΠΏΠΈΠ½Ρ ΠΈΠ»ΠΈ ΡΠΊΠΎΠ»ΠΎΠ², Π° Π·Π°ΡΠ΅ΠΌ Π·Π°ΠΏΠΎΠ»Π½ΠΈΡΡ ΠΎΠ±Π»Π°ΡΡΡ Π·Π°ΠΌΠ°Π·ΠΊΠΎΠΉ ΠΈΠ»ΠΈ ΠΊΠ°ΡΠ°Π½Π΄Π°ΡΠΎΠΌ, ΠΊΠΎΡΠΎΡΡΠΉ Π²Ρ ΠΎΠ΄ΠΈΡ Π² ΠΊΠΎΠΌΠΏΠ»Π΅ΠΊΡ. ΠΠ»Ρ Π±ΠΎΠ»Π΅Π΅ ΡΠ΅ΡΡΠ΅Π·Π½ΠΎΠ³ΠΎ ΡΠ΅ΠΌΠΎΠ½ΡΠ° Ρ ΠΊΡΠ°Π΅Π² ΠΏΠΎΠ»Π° Π²Π°ΠΌ Π½ΡΠΆΠ½ΠΎ Π±ΡΠ΄Π΅Ρ ΡΠ½ΡΡΡ ΠΏΠ»ΠΈΠ½ΡΡΡΡ ΠΈΠ»ΠΈ ΠΏΠ»ΠΈΠ½ΡΡΡ, ΡΡΠΎΠ±Ρ Π²Ρ ΠΌΠΎΠ³Π»ΠΈ ΠΏΠΎΠ΄Π½ΡΡΡ Π΄ΠΎΡΠΊΠΈ, Π±Π»ΠΈΠΆΠ°ΠΉΡΠΈΠ΅ ΠΊ ΡΡΠ΅Π½Π΅. ΠΠΎΠ³Π΄Π° Π²Ρ Π΄ΠΎΠ±Π΅ΡΠ΅ΡΠ΅ΡΡ Π΄ΠΎ ΠΏΠΎΠ²ΡΠ΅ΠΆΠ΄Π΅Π½Π½ΠΎΠΉ Π΄ΠΎΡΠΊΠΈ, Π²ΡΠ½ΡΡΠ΅ Π΅Π΅ ΠΈ Π²ΡΡΠ°Π²ΡΡΠ΅ Π½ΠΎΠ²ΡΡ Π΄ΠΎΡΠΊΡ. ΠΠ°ΠΌΠ΅Π½ΠΈΡΠ΅ Π΄ΡΡΠ³ΠΈΠ΅ Π΄ΠΎΡΠΊΠΈ ΠΈ Π»ΡΠ±ΡΠ΅ ΠΏΠ»ΠΈΠ½ΡΡΡΡ ΠΈΠ»ΠΈ ΠΌΠΎΠ»Π΄ΠΈΠ½Π³ΠΈ, ΠΊΠΎΡΠΎΡΡΠ΅ Π²Ρ ΡΠ½ΡΠ»ΠΈ. Π§ΠΈΡΠ°ΠΉΡΠ΅ Π΄Π°Π»ΡΡΠ΅, ΡΡΠΎΠ±Ρ ΡΠ·Π½Π°ΡΡ, ΠΊΠ°ΠΊ ΠΎΡΡΠ΅ΠΌΠΎΠ½ΡΠΈΡΠΎΠ²Π°ΡΡ ΠΏΠΎΠ²ΡΠ΅ΠΆΠ΄Π΅Π½Π½ΡΠ΅ Π΄ΠΎΡΠΊΠΈ Π² ΡΠ΅ΡΠ΅Π΄ΠΈΠ½Π΅ Π²Π°ΡΠ΅Π³ΠΎ ΠΏΠΎΠ»Π°!
- ΠΠ΅ΡΠ°ΡΡ
- ΠΡΠΏΡΠ°Π²ΠΈΡΡ ΡΠ°Π½Π°ΡΡΠΊΡΡ ΠΏΠΎΡΡΡ Π°Π²ΡΠΎΡΠ°ΠΌ

Π§ΡΠΎ Π½ΡΠΆΠ½ΠΎ ΠΈ ΡΠ΅Π³ΠΎ Π½Π΅Π»ΡΠ·Ρ Π΄Π΅Π»Π°ΡΡ ΠΏΡΠΈ ΡΠΊΠ»Π°Π΄ΠΊΠ΅ Π»Π°ΠΌΠΈΠ½Π°ΡΠ°
ΠΡΠΎΡΡΠΈΡΠ΅ Π½Π°Ρ Π±Π»ΠΎΠ³ ΠΎ Π½Π°ΠΏΠΎΠ»ΡΠ½ΡΡ ΠΏΠΎΠΊΡΡΡΠΈΡΡ , ΡΡΠΎΠ±Ρ ΡΠ·Π½Π°ΡΡ ΠΎ Π΄ΠΈΠ·Π°ΠΉΠ½Π΅ΡΡΠΊΠΈΡ ΠΈΠ΄Π΅ΡΡ , ΠΈΠ½ΡΠΎΡΠΌΠ°ΡΠΈΠΈ ΠΎΠ± ΡΡ ΠΎΠ΄Π΅ ΠΈ ΡΠ΅Ρ Π½ΠΈΡΠ΅ΡΠΊΠΎΠΌ ΠΎΠ±ΡΠ»ΡΠΆΠΈΠ²Π°Π½ΠΈΠΈ, ΠΏΡΠ°ΠΊΡΠΈΡΠ΅ΡΠΊΠΈΡ ΡΡΠΊΠΎΠ²ΠΎΠ΄ΡΡΠ²Π°Ρ ΠΏΠΎ Π½Π°ΠΏΠΎΠ»ΡΠ½ΡΠΌ ΠΏΠΎΠΊΡΡΡΠΈΡΠΌ (Π΄Π΅ΡΠ΅Π²ΠΎ, Π»Π°ΠΌΠΈΠ½Π°Ρ, Π²ΠΈΠ½ΠΈΠ»ΠΎΠ²Π°Ρ Π΄ΠΎΡΠΊΠ°, ΠΏΠ»ΠΈΡΠΊΠ°, ΠΠΈΠ½ΠΎΠ»Π΅ΡΠΌ).
ΠΡΠ±ΠΈΡΠ°Ρ ΡΠΊΠ»Π°Π΄ΠΊΡ Π»Π°ΠΌΠΈΠ½Π°ΡΠ°, Π½Π΅ΠΎΠ±Ρ ΠΎΠ΄ΠΈΠΌΠΎ Π·Π½Π°ΡΡ Π½Π΅ΡΠΊΠΎΠ»ΡΠΊΠΎ ΠΌΠΎΠΌΠ΅Π½ΡΠΎΠ².ΠΠΎΡΠΊΠΎΠ»ΡΠΊΡ Π½Π°ΠΏΠΎΠ»ΡΠ½ΠΎΠ΅ ΠΏΠΎΠΊΡΡΡΠΈΠ΅ Π² ΡΠ΅Π»ΠΎΠΌ ΡΠ²Π»ΡΠ΅ΡΡΡ Π½Π΅ΠΎΡΡΠ΅ΠΌΠ»Π΅ΠΌΠΎΠΉ ΡΠ°ΡΡΡΡ Π²Π°ΡΠ΅Π³ΠΎ Π΄ΠΎΠΌΠ° Π΄Π»Ρ Π»Π΅Ρ, Π΅Π³ΠΎ Π½ΡΠΆΠ½ΠΎ ΠΏΡΠ°Π²ΠΈΠ»ΡΠ½ΠΎ ΡΡΡΠ°Π½ΠΎΠ²ΠΈΡΡ. ΠΡΠΎ ΠΏΡΠ΅Π΄ΠΎΡΠ²ΡΠ°ΡΠ°Π΅Ρ ΠΏΡΠΎΠ±Π»Π΅ΠΌΡ ΠΈ Π΄ΠΎΡΠΎΠ³ΠΎΡΡΠΎΡΡΠΈΠ΅ ΠΈΡΠΏΡΠ°Π²Π»Π΅Π½ΠΈΡ Π² Π±ΡΠ΄ΡΡΠ΅ΠΌ. ΠΠΎΠΌΠΈΠΌΠΎ Π½Π°ΠΏΡΠ°Π²Π»ΡΡΡΠΈΡ , Ρ Π½Π°Ρ Π΅ΡΡΡ Π½Π΅ΠΊΠΎΡΠΎΡΡΠ΅ ΠΏΡΠ°Π²ΠΈΠ»Π°, ΠΊΠΎΡΠΎΡΡΠ΅ ΠΏΠΎΠΌΠΎΠ³ΡΡ Π²Π°ΠΌ ΠΈΠ·Π±Π΅ΠΆΠ°ΡΡ Π»ΡΠ±ΡΡ Π΄ΡΡΠ³ΠΈΡ ΠΏΠΎΡΠ΅Π½ΡΠΈΠ°Π»ΡΠ½ΡΡ ΠΏΡΠΎΠ±Π»Π΅ΠΌ Ρ Π²Π°ΡΠΈΠΌ ΠΏΠΎΠ»ΠΎΠΌ Π΄ΠΎ, Π²ΠΎ Π²ΡΠ΅ΠΌΡ ΠΈ ΠΏΠΎΡΠ»Π΅ ΡΠΊΠ»Π°Π΄ΠΊΠΈ. ΠΠΎΡΠ΅ΡΠ΅Π½ΠΈΠ΅ Π½Π°ΡΠ° ΠΊΠΎΠΌΠ°Π½Π΄Π° ΡΠ΅Π³ΠΎΠ΄Π½Ρ, ΡΡΠΎΠ±Ρ Π½Π°ΡΠ°ΡΡ.
Π£ΠΊΠ»Π°Π΄ΠΊΠ° Π»Π°ΠΌΠΈΠ½Π°ΡΠ° Dos
- ΠΠ΅ΡΠ΅Π΄ Π½Π°ΡΠ°Π»ΠΎΠΌ ΡΠ°Π±ΠΎΡΡ ΠΎΠΏΡΠ΅Π΄Π΅Π»ΠΈΡΠ΅ Π½Π°ΠΏΡΠ°Π²Π»Π΅Π½ΠΈΠ΅ ΠΈ ΡΠΈΡΡΠ½ΠΎΠΊ ΠΏΠΎΠ»Π°.

- ΠΠΊΠΊΠ»ΠΈΠΌΠ°ΡΠΈΠ·ΠΈΡΡΠΉΡΠ΅ Π½Π°ΠΏΠΎΠ»ΡΠ½ΠΎΠ΅ ΠΏΠΎΠΊΡΡΡΠΈΠ΅ Π΄ΠΎ ΠΊΠΎΠΌΠ½Π°ΡΠ½ΠΎΠΉ ΡΠ΅ΠΌΠΏΠ΅ΡΠ°ΡΡΡΡ Π½Π΅ ΠΌΠ΅Π½Π΅Π΅ ΡΠ΅ΠΌ Π·Π° 48 ΡΠ°ΡΠΎΠ² Π΄ΠΎ ΡΠΊΠ»Π°Π΄ΠΊΠΈ.
- Π£Π±Π΅Π΄ΠΈΡΠ΅ΡΡ, ΡΡΠΎ Π²Π°Ρ ΡΠ΅ΡΠ½ΡΠΉ ΠΏΠΎΠ» ΠΏΠΎΠ΄Π³ΠΎΡΠΎΠ²Π»Π΅Π½, Π²ΡΡΠΎΠ²Π½Π΅Π½ ΠΈ ΡΡΡΡΠΊΡΡΡΠ½ΠΎ ΠΏΡΠΎΡΠ΅Π½.
- Π‘ΠΎΠ±Π΅ΡΠΈΡΠ΅ Π²ΡΠ΅ Π½Π΅ΠΎΠ±Ρ ΠΎΠ΄ΠΈΠΌΡΠ΅ ΠΈΠ½ΡΡΡΡΠΌΠ΅Π½ΡΡ Π΄Π»Ρ ΡΡΡΠ°Π½ΠΎΠ²ΠΊΠΈ ΠΈ ΡΠ°Π·Π»ΠΎΠΆΠΈΡΠ΅ ΠΈΡ Π² Π»Π΅Π³ΠΊΠΎΠ΄ΠΎΡΡΡΠΏΠ½ΠΎΠΌ ΠΌΠ΅ΡΡΠ΅ ΠΈΠ»ΠΈ Π΄Π»Ρ ΠΈΡΠΏΠΎΠ»ΡΠ·ΠΎΠ²Π°Π½ΠΈΡ.
- ΠΡΠ»ΠΈ ΠΊ Π²Π°ΡΠ΅ΠΌΡ ΠΏΠΎΠ»Ρ Π½Π΅ ΠΏΡΠΈΠΊΡΠ΅ΠΏΠ»Π΅Π½Π° ΠΏΠΎΠ΄Π»ΠΎΠΆΠΊΠ° ΠΈΠ· Π»Π°ΠΌΠΈΠ½Π°ΡΠ°, ΠΈΡΠΏΠΎΠ»ΡΠ·ΡΠΉΡΠ΅ ΠΏΠΎΠ΄Ρ ΠΎΠ΄ΡΡΡΡ Π΄Π»Ρ Π²Π°ΡΠ΅Π³ΠΎ Π»Π°ΠΌΠΈΠ½Π°ΡΠ° ΠΏΠΎΠ΄Π»ΠΎΠΆΠΊΡ.
- ΠΠ±Π΅ΡΠΏΠ΅ΡΡΡΠ΅ Π±Π΅ΡΡΠΎΠ²Π½ΡΡ ΡΡΡΠ°Π½ΠΎΠ²ΠΊΡ, ΡΠΎΠ΅Π΄ΠΈΠ½ΠΈΠ² ΠΏΠΎΠ΄Π»ΠΎΠΆΠΊΡ Π»Π΅Π½ΡΠΎΠΉ.
- ΠΡΠΌΠΎΡΡΠΈΡΠ΅ Π΄ΠΎΡΠΊΠΈ Π½Π° Π½Π°Π»ΠΈΡΠΈΠ΅ Π²ΠΈΠ΄ΠΈΠΌΡΡ ΠΏΠΎΠ²ΡΠ΅ΠΆΠ΄Π΅Π½ΠΈΠΉ.ΠΡΠ»ΠΈΡΠ½ΡΠΉ ΡΠΎΠ²Π΅Ρ β ΠΏΡΠΎΠ²Π΅ΡΠΈΡΡ Π΄ΠΎΡΠΊΠΈ ΠΈΠ· 3 ΡΡΠΈΠΊΠΎΠ² Π½Π°ΡΠ³Π°Π΄!
- ΠΡΠΏΠΎΠ»ΡΠ·ΡΠΉΡΠ΅ ΠΊΠΎΠΌΠΏΠ»Π΅ΠΊΡ Π΄Π»Ρ ΡΡΡΠ°Π½ΠΎΠ²ΠΊΠΈ Π»Π°ΠΌΠΈΠ½Π°ΡΠ°, ΡΡΠΎΠ±Ρ ΡΠΏΡΠΎΡΡΠΈΡΡ ΡΡΡΠ°Π½ΠΎΠ²ΠΊΡ.
- ΠΡΡΠ°Π²ΡΡΠ΅ ΠΊΠΎΠΌΠΏΠ΅Π½ΡΠ°ΡΠΈΠΎΠ½Π½ΡΠΉ Π·Π°Π·ΠΎΡ Π½Π΅ ΠΌΠ΅Π½Π΅Π΅ 0,25 Π΄ΡΠΉΠΌΠ° ΠΏΠΎ ΠΏΠ΅ΡΠΈΠΌΠ΅ΡΡΡ ΠΈ 0,5 Π΄ΡΠΉΠΌΠ° Π΄Π»Ρ Π±ΠΎΠ»ΡΡΠΈΡ ΠΏΠ»ΠΎΡΠ°Π΄Π΅ΠΉ.
- Π Π°ΡΡΡΠ°Π²ΡΡΠ΅ ΡΡΠ΄Ρ Π½Π° ΠΎΠ΄Π½Ρ ΡΠΈΡΠΈΠ½Ρ Π΄ΠΎΡΠΊΠΈ ΠΎΡ Π΄ΡΡΠ³ΠΎΠΉ.
- Π‘ΡΡΠΊΠΈ Π΄ΠΎΠ»ΠΆΠ½Ρ ΡΠ°ΡΠΏΠΎΠ»Π°Π³Π°ΡΡΡΡ Π½Π° ΡΠ°ΡΡΡΠΎΡΠ½ΠΈΠΈ 12β18 Π΄ΡΠΉΠΌΠΎΠ² Π΄ΡΡΠ³ ΠΎΡ Π΄ΡΡΠ³Π° Π΄Π»Ρ Π»ΡΡΡΠ΅ΠΉ ΠΏΠΎΠ΄Π΄Π΅ΡΠΆΠΊΠΈ ΠΊΠΎΠ½ΡΡΡΡΠΊΡΠΈΠΈ.
- ΠΡΠΏΠΎΠ»ΡΠ·ΡΠΉΡΠ΅ Π½Π΅Π±ΠΎΠ»ΡΡΠΈΠ΅ ΠΊΡΡΠΎΡΠΊΠΈ Π»ΠΎΠΌΠ° Π»Π°ΠΌΠΈΠ½Π°ΡΠ° Π² ΠΊΠ°ΡΠ΅ΡΡΠ²Π΅ ΠΏΡΠΎΠΊΠ»Π°Π΄ΠΎΠΊ ΠΈ ΡΠΎΡ
ΡΠ°Π½ΡΠΉΡΠ΅ ΡΠ°ΠΊΠΎΠΉ ΠΆΠ΅ ΡΠ°Π·ΠΌΠ΅Ρ ΠΊΠΎΠΌΠΏΠ΅Π½ΡΠ°ΡΠΈΠΎΠ½Π½ΠΎΠ³ΠΎ Π·Π°Π·ΠΎΡΠ°.

Π£ΠΊΠ»Π°Π΄ΠΊΠ° Π»Π°ΠΌΠΈΠ½Π°ΡΠ° ΠΠ°ΠΏΡΠ΅ΡΠ΅Π½ΠΎ
- ΠΠ΅ ΡΠΊΠ»Π°Π΄ΡΠ²Π°ΠΉΡΠ΅ Π»Π°ΠΌΠΈΠ½Π°Ρ Π½Π° ΠΏΠΎΠ» ΡΠΎ ΡΠ»ΠΈΠ²ΠΎΠΌ.
- ΠΠ΅ ΡΠΊΠ»Π°Π΄ΡΠ²Π°ΠΉΡΠ΅ Π»Π°ΠΌΠΈΠ½Π°Ρ Π½Π° Π½Π΅ΡΠΎΠ²Π½ΡΠΉ ΠΏΠΎΠ» ΠΈΠ»ΠΈ Π½Π° ΡΠ»ΠΈΡΡ.
- ΠΠ΅ ΡΠΊΠ»Π°Π΄ΡΠ²Π°ΠΉΡΠ΅ Π»Π°ΠΌΠΈΠ½Π°Ρ Π½Π° ΠΊΠΎΠ²Π΅Ρ Π² ΠΆΠΈΠ»ΡΡ ΠΏΠΎΠΌΠ΅ΡΠ΅Π½ΠΈΡΡ .
- ΠΠ΅ ΡΠΊΠ»Π°Π΄ΡΠ²Π°ΠΉΡΠ΅ Π²ΡΠΎΡΠΎΠΉ ΡΠ»ΠΎΠΉ ΠΏΠΎΠ΄Π»ΠΎΠΆΠΊΠΈ ΠΈΠ· Π»Π°ΠΌΠΈΠ½Π°ΡΠ°. ΠΡΠΎ ΠΌΠΎΠΆΠ΅Ρ ΡΠΎΠ·Π΄Π°ΡΡ ΡΠ»ΠΈΡΠΊΠΎΠΌ Π±ΠΎΠ»ΡΡΡΡ ΠΏΠΎΠ΄ΡΡΠΊΡ, ΡΡΠ°Π²Ρ ΠΏΠΎΠ΄ ΡΠ³ΡΠΎΠ·Ρ ΡΠΈΡΡΠ΅ΠΌΡ Π±Π»ΠΎΠΊΠΈΡΠΎΠ²ΠΊΠΈ ΠΈ ΡΡΡΡΠ°Π²Ρ.
- ΠΠ΅ ΡΠΊΠ»Π°Π΄ΡΠ²Π°ΠΉΡΠ΅ Π»Π°ΠΌΠΈΠ½Π°Ρ ΡΠ°ΠΌ, Π³Π΄Π΅ ΠΎΠ½ Π±ΡΠ΄Π΅Ρ ΠΏΠΎΡΡΠΎΡΠ½Π½ΠΎ ΠΏΠΎΠ΄Π²Π΅ΡΠ³Π°ΡΡΡΡ Π²Π»Π°ΠΆΠ½ΠΎΠΌΡ Π²ΠΎΠ·Π΄ΡΡ Ρ ΠΈΠ»ΠΈ ΡΠΊΡΡΡΠ΅ΠΌΠ°Π»ΡΠ½ΠΎΠΌΡ ΡΡΠΎΠ²Π½Ρ Π²Π»Π°ΠΆΠ½ΠΎΡΡΠΈ (ΡΠ»ΠΈΡΠΊΠΎΠΌ Π²ΡΡΠΎΠΊΠΎΠΉ ΠΈΠ»ΠΈ ΡΠ»ΠΈΡΠΊΠΎΠΌ Π½ΠΈΠ·ΠΊΠΎΠΉ).
- ΠΠ΅ ΡΠΊΠ»Π°Π΄ΡΠ²Π°ΠΉΡΠ΅ Π»Π°ΠΌΠΈΠ½Π°Ρ Π² Π΄Π»ΠΈΠ½Ρ Π±ΠΎΠ»Π΅Π΅ ΡΠ΅ΠΌ Π½Π° 30 ΠΏΠΎΠ³ΠΎΠ½Π½ΡΡ ΡΡΡΠΎΠ², Π΅ΡΠ»ΠΈ Ρ Π²Π°Ρ Π½Π΅Ρ ΠΏΠ΅ΡΠ΅Ρ ΠΎΠ΄Π½ΠΎΠΉ ΠΏΠΎΠ»ΠΎΡΡ.
- ΠΠ΅ ΡΠ΅ΠΆΡΡΠ΅ Π»Π°ΠΌΠΈΠ½Π°Ρ Π² ΡΠΎΠΌ ΠΆΠ΅ ΠΌΠ΅ΡΡΠ΅, Π³Π΄Π΅ Π²Ρ Π΅Π³ΠΎ ΡΠΊΠ»Π°Π΄ΡΠ²Π°Π΅ΡΠ΅. ΠΠ΅ΡΠΆΠΈΡΠ΅ ΡΠ΅ΡΡΠΈΡΠΎΡΠΈΡ Π² ΡΠΈΡΡΠΎΡΠ΅ ΠΎΡ ΠΌΡΡΠΎΡΠ°.
- ΠΠ΅ ΠΏΡΠΈΠ±ΠΈΠ²Π°ΠΉΡΠ΅ Π½Π°ΡΡΠ΅Π½Π½ΡΠΉ ΠΏΠ»ΠΈΠ½ΡΡΡ ΠΈΠ»ΠΈ ΡΠ΅ΡΠ²Π΅ΡΡΡ ΠΊΡΡΠ³Π° ΠΊ ΠΏΠΎΠ»Ρ. ΠΡΠ΅Π³Π΄Π° ΠΏΡΠΈΠΊΡΠ΅ΠΏΠ»ΡΠΉΡΠ΅ Π΅Π³ΠΎ ΠΊ ΡΡΠ΅Π½Π΅ ΡΠ°ΠΊ, ΡΡΠΎΠ±Ρ ΠΏΠΎΠ΄ Π½ΠΈΠΌ Π±ΡΠ»ΠΎ ΡΠ²ΠΎΠ±ΠΎΠ΄Π½ΠΎΠ΅ ΠΏΡΠΎΡΡΡΠ°Π½ΡΡΠ²ΠΎ, ΡΡΠΎΠ±Ρ ΠΏΠΎΠ» ΠΌΠΎΠ³ ΡΠ°ΡΡΠΈΡΡΡΡΡΡ ΠΈ ΡΡΠΆΠ°ΡΡΡΡ.
ΠΠΎΠ³Π΄Π° Π΄Π΅Π»ΠΎ Π΄ΠΎΡ
ΠΎΠ΄ΠΈΡ Π΄ΠΎ ΠΏΠΎΠΊΡΠΏΠΊΠΈ Π»Π°ΠΌΠΈΠ½Π°ΡΠ°, ΡΠΏΡΠΎΡΡΠΈΡΠ΅ Π΅Π³ΠΎ ΡΠΊΠ»Π°Π΄ΠΊΡ, ΠΊΡΠΏΠΈΠ² Π»ΡΠ±ΡΠ΅ ΠΏΠΎΡΠΎΠ³ΠΈ, ΡΠ΅ΡΠ²Π΅ΡΡΠ½ΡΠ΅ ΠΊΡΡΠ³ΠΈ ΠΈ ΠΌΠΎΠ»Π΄ΠΈΠ½Π³ΠΈ ΠΎΡΠ½ΠΎΠ²Π°Π½ΠΈΡ Π²
Π² ΡΠΎ ΠΆΠ΅ Π²ΡΠ΅ΠΌΡ.
ΠΡΠΎ Π½Π΅ ΡΠΎΠ»ΡΠΊΠΎ ΡΠΊΠΎΠ½ΠΎΠΌΠΈΡ Π²ΡΠ΅ΠΌΡ, Π½ΠΎ ΠΈ Π΄Π΅Π½ΡΠ³ΠΈ. ΠΠ°ΠΌΠΈΠ½Π°Ρ ΠΏΠΎΡΡΠ°Π²Π»ΡΠ΅ΡΡΡ Π² ΡΠ°Π·Π»ΠΈΡΠ½ΡΡ
ΡΠ²Π΅ΡΠ°Ρ
ΠΈ ββββΡΡΠΈΠ»ΡΡ
, ΡΡΠΎΠ±Ρ ΡΠ΄ΠΎΠ²Π»Π΅ΡΠ²ΠΎΡΠΈΡΡ Π²Π°ΡΠΈ ΠΏΠΎΡΡΠ΅Π±Π½ΠΎΡΡΠΈ Π² Π΄Π΅ΠΊΠΎΡΠΈΡΠΎΠ²Π°Π½ΠΈΠΈ.Π’ΠΎ
Π΄ΠΎΠ»Π³ΠΎΠ²Π΅ΡΠ½ΠΎΡΡΡ ΠΈ ΠΏΡΠΎΡΠ½ΠΎΡΡΡ Π»Π°ΠΌΠΈΠ½Π°ΡΠ° β Π΄Π²Π° ΠΊΠ°ΡΠ΅ΡΡΠ²Π°, ΠΊΠΎΡΠΎΡΡΠ΅ Π²Ρ ΠΎΡΠ΅Π½ΠΈΡΠ΅ Π½Π° Π΄ΠΎΠ»Π³ΠΈΠ΅ Π³ΠΎΠ΄Ρ, Π΅ΡΠ»ΠΈ ΡΠ»ΠΎΠΆΠΈΡΠ΅ ΠΏΠΎΠ».
ΠΏΡΠ°Π²ΠΈΠ»ΡΠ½ΠΎ.
ΠΠΎΡΠΎΠ²Ρ ΠΏΠ΅ΡΠ΅ΠΉΡΠΈ Π½Π° Π»Π°ΠΌΠΈΠ½Π°Ρ?
Π’Π΅ΠΏΠ΅ΡΡ, ΠΊΠΎΠ³Π΄Π° Π²Ρ Π·Π½Π°Π΅ΡΠ΅, ΡΡΠΎ Π½ΡΠΆΠ½ΠΎ ΠΈ ΡΡΠΎ Π½Π΅Π»ΡΠ·Ρ Π΄Π΅Π»Π°ΡΡ ΠΏΡΠΈ ΡΠΊΠ»Π°Π΄ΠΊΠ΅ Π»Π°ΠΌΠΈΠ½Π°ΡΠ°, Π½Π΅ Π±ΠΎΠΉΡΠ΅ΡΡ Π±ΡΠ°ΡΡΡΡ Π·Π° ΡΠΊΠ»Π°Π΄ΠΊΡ. ΠΠ°ΠΊ ΡΠΎΠ»ΡΠΊΠΎ Π²Ρ ΡΠ·Π½Π°Π΅ΡΠ΅ Π½Π°ΠΏΡΠ°Π²Π»Π΅Π½ΠΈΠ΅ ΠΈ Π°ΡΠΏΠ΅ΠΊΡΡ Π²Π°ΡΠ΅ΠΉ ΠΊΠΎΠΌΠ½Π°ΡΡ, ΡΠ°ΠΊΠΈΠ΅ ΠΊΠ°ΠΊ ΡΠ΅ΡΠ½ΡΠΉ ΠΏΠΎΠ», Π²Ρ Π±ΡΠ΄Π΅ΡΠ΅ ΡΡΡΠ°Π½Π°Π²Π»ΠΈΠ²Π°ΡΡ ΡΠ²ΠΎΠΉ Π½ΠΎΠ²ΡΠΉ ΠΏΠΎΠ» Π² ΠΊΡΠ°ΡΡΠ°ΠΉΡΠΈΠ΅ ΡΡΠΎΠΊΠΈ. ΠΡΠΆΠ½Π° Π΄ΠΎΠΏΠΎΠ»Π½ΠΈΡΠ΅Π»ΡΠ½Π°Ρ ΠΏΠΎΠΌΠΎΡΡ? ΠΠΎΠ½ΡΠ°ΠΊΡ Π½Π°ΠΌ ΡΠ΅Π³ΠΎΠ΄Π½Ρ, ΠΈ ΠΏΡΡΡΡ Π½Π°ΡΠΈ Π·Π½Π°ΡΡΠΈΠ΅ ΡΠΎΡΡΡΠ΄Π½ΠΈΠΊΠΈ ΠΏΠΎΠΌΠΎΠ³ΡΡ Π²Π°ΠΌ Ρ Π²Π°ΡΠΈΠΌ Π»Π°ΠΌΠΈΠ½Π°ΡΠΎΠΌ.
ΠΠ°ΠΊ ΠΏΠΎΡΠΈΠ½ΠΈΡΡ Π»Π°ΠΌΠΈΠ½ΠΈΡΠΎΠ²Π°Π½Π½ΡΠ΅ ΠΏΠΎΠ»Ρ, ΠΊΠΎΡΠΎΡΡΠ΅ ΡΠ°Π·Π±Π»ΠΎΠΊΠΈΡΠΎΠ²Π°Π»ΠΈΡΡ Π΄ΡΡΠ³ ΠΎΡ Π΄ΡΡΠ³Π° | Π‘ΠΏΡΠ°Π²ΠΎΡΠ½ΠΈΠΊ ΠΏΠΎ Π΄ΠΎΠΌΡ
ΠΠ°ΠΌΠΈΠ½ΠΈΡΠΎΠ²Π°Π½Π½ΡΠ΅ Π½Π°ΠΏΠΎΠ»ΡΠ½ΡΠ΅ ΠΏΠΎΠΊΡΡΡΠΈΡ β ΠΎΠ΄Π½ΠΎ ΠΈΠ· ΠΎΡΠ½ΠΎΠ²Π½ΡΡ
Π½ΠΎΠ²ΠΎΠ²Π²Π΅Π΄Π΅Π½ΠΈΠΉ, ΠΏΠΎΡΠ²ΠΈΠ²ΡΠΈΡ
ΡΡ Π² ΡΠ΅Π·ΡΠ»ΡΡΠ°ΡΠ΅ ΡΠ΅Π²ΠΎΠ»ΡΡΠΈΠΈ Β«ΡΠ΄Π΅Π»Π°ΠΉ ΡΠ°ΠΌΒ», ΠΏΠΎΠ·Π²ΠΎΠ»ΡΡΡΠ΅Π΅ Π΄ΠΎΠΌΠΎΠ²Π»Π°Π΄Π΅Π»ΡΡΠ°ΠΌ ΠΈΡΠΏΠΎΠ»ΡΠ·ΠΎΠ²Π°ΡΡ Π΄ΠΎΡΡΡΠΏΠ½ΡΠΉ ΠΈ ΠΏΡΠΎΡΡΠΎΠΉ Π² ΡΠΊΠ»Π°Π΄ΠΊΠ΅ ΠΌΠ°ΡΠ΅ΡΠΈΠ°Π», ΠΊΠΎΡΠΎΡΡΠΉ Π²ΡΠ³Π»ΡΠ΄ΠΈΡ ΠΊΠ°ΠΊ Π΄Π΅ΡΠ΅Π²ΠΎ, Π½ΠΎ Π½Π΅ ΡΡΠ΅Π±ΡΠ΅Ρ Π±ΠΎΠ»ΡΡΠΈΡ
Π·Π°ΡΡΠ°Ρ.
ΠΠ°ΡΠ΅ΡΠΈΠ°Π» Π΄Π»Ρ ΡΠ±ΠΎΡΠΊΠΈ ΠΌΠΎΠΆΠ½ΠΎ Π½Π°ΠΉΡΠΈ Π² Π»ΡΠ±ΠΎΠΌ ΠΌΠ°Π³Π°Π·ΠΈΠ½Π΅ ΡΠΎΠ²Π°ΡΠΎΠ² Π΄Π»Ρ Π΄ΠΎΠΌΠ°. ΠΡΠ»ΠΈ Ρ Π²Π°Ρ Π΅ΡΡΡ Π΄Π΅ΡΠ°Π»ΠΈ, ΠΊΠΎΡΠΎΡΡΠ΅ ΠΎΡΡΠΎΠ΅Π΄ΠΈΠ½ΠΈΠ»ΠΈΡΡ Π΄ΡΡΠ³ ΠΎΡ Π΄ΡΡΠ³Π°, ΠΈΡ
ΠΌΠΎΠΆΠ½ΠΎ Π±ΡΡΡΡΠΎ ΠΎΡΡΠ΅ΠΌΠΎΠ½ΡΠΈΡΠΎΠ²Π°ΡΡ Π±Π΅Π· ΠΈΡΠΏΠΎΠ»ΡΠ·ΠΎΠ²Π°Π½ΠΈΡ ΡΠΏΠ΅ΡΠΈΠ°Π»ΡΠ½ΡΡ
ΠΈΠ½ΡΡΡΡΠΌΠ΅Π½ΡΠΎΠ².
ΠΠ΅ΡΠ²ΡΠ΅ ΠΌΠ΅ΡΡ
ΠΠΎΡΠΌΠΎΡΡΠΈΡΠ΅, ΡΠΌΠΎΠΆΠ΅ΡΠ΅ Π»ΠΈ Π²Ρ ΡΠΎΠ΅Π΄ΠΈΠ½ΠΈΡΡ ΡΠ°ΡΡΠΈ Π²ΠΌΠ΅ΡΡΠ΅ Ρ ΠΏΠΎΠΌΠΎΡΡΡ ΠΎΡΠ²Π΅ΡΡΠΊΠΈ ΠΈΠ»ΠΈ Π½ΠΎΠΆΠ° Π΄Π»Ρ ΠΌΠ°ΡΠ»Π°, ΡΡΠΎΠ±Ρ ΠΏΠΎΠΌΠΎΡΡ ΠΏΡΠΈΠΏΠΎΠ΄Π½ΡΡΡ ΡΠΎΡΠ΅Π΄Π½ΠΈΠ΅ ΡΠ°ΡΡΠΈ, ΡΡΠΎΠ±Ρ ΡΠΎΠ΅Π΄ΠΈΠ½ΠΈΡΡ ΠΈΡ Π²ΡΠ΅ Π²ΠΌΠ΅ΡΡΠ΅. ΠΡΡΡΠ΄Π° ΠΏΠ»ΠΎΡΠ½ΠΎ ΠΏΡΠΈΠΆΠΌΠΈΡΠ΅ ΠΊΠ°ΠΆΠ΄ΡΡ ΡΠΎΡΠ΅Π΄Π½ΡΡ Π΄Π΅ΡΠ°Π»Ρ ΠΊ ΠΏΡΠ΅Π΄ΡΠ΄ΡΡΠ΅ΠΉ Ρ ΠΏΠΎΠΌΠΎΡΡΡ ΡΠ΅Π·ΠΈΠ½ΠΎΠ²ΠΎΠ³ΠΎ ΠΌΠΎΠ»ΠΎΡΠΊΠ° ΠΈ Π΄Π²ΠΈΠ³Π°ΠΉΡΠ΅ΡΡ Π½Π°Π·Π°Π΄ ΠΎΡ ΠΈΡΡ ΠΎΠ΄Π½ΠΎΠΉ Π½Π΅Π·Π°ΠΊΡΠ΅ΠΏΠ»Π΅Π½Π½ΠΎΠΉ Π΄Π΅ΡΠ°Π»ΠΈ ΠΊ ΡΡΠ΅Π½Π΅, ΠΏΠ»ΠΎΡΠ½ΠΎ ΠΏΡΠΈΠΆΠΈΠΌΠ°Ρ ΠΊΠ°ΠΆΠ΄ΡΡ ΠΏΠΎΡΠ»Π΅Π΄ΡΡΡΡΡ Π΄Π΅ΡΠ°Π»Ρ ΠΊ ΠΏΡΠ΅Π΄ΡΠ΄ΡΡΠ΅ΠΉ, ΠΏΠΎΠΊΠ° Π½Π΅ Π΄ΠΎΠΉΠ΄Π΅ΡΠ΅ Π΄ΠΎ ΡΡΠ΅Π½Ρ. ΠΡΠ»ΠΈ Π²Ρ Π½Π΅ ΠΌΠΎΠΆΠ΅ΡΠ΅ ΡΠΎΠ΅Π΄ΠΈΠ½ΠΈΡΡ ΡΠ°ΡΡΠΈ ΡΠ°ΠΊΠΈΠΌ ΠΎΠ±ΡΠ°Π·ΠΎΠΌ, Π½Π°ΠΉΠ΄ΠΈΡΠ΅ Π±Π»ΠΈΠΆΠ°ΠΉΡΡΡ ΠΏΠ°ΡΠ°Π»Π»Π΅Π»ΡΠ½ΡΡ ΡΡΠ΅Π½Ρ ΠΊ ΠΏΡΠΎΠ±Π»Π΅ΠΌΠ½ΠΎΠΉ ΡΠ°ΡΡΠΈ.
Π£Π΄Π°Π»Π΅Π½ΠΈΠ΅ ΠΏΠ»ΠΈΠ½ΡΡΡΠ°
Π‘Π½ΠΈΠΌΠΈΡΠ΅ ΠΏΠ»ΠΈΠ½ΡΡΡ Π½Π° Π±Π»ΠΈΠΆΠ°ΠΉΡΠ΅ΠΉ ΠΏΠ°ΡΠ°Π»Π»Π΅Π»ΡΠ½ΠΎΠΉ ΡΡΠ΅Π½Π΅, ΡΡΠΎΠ±Ρ ΠΎΡΠΊΡΡΡΡ Π·Π°Π·ΠΎΡ ΠΌΠ΅ΠΆΠ΄Ρ ΠΏΠΎΡΠ»Π΅Π΄Π½ΠΈΠΌ ΡΡΠ΄ΠΎΠΌ Π»Π°ΠΌΠΈΠ½Π°ΡΠ° ΠΈ ΡΠ°ΠΌΠΎΠΉ ΡΡΠ΅Π½ΠΎΠΉ. ΠΡΠ»ΠΈ ΠΏΠ»ΠΈΠ½ΡΡΡ Π±ΡΠ» ΠΏΡΠΈΠΊΠ»Π΅Π΅Π½ ΠΊ ΡΡΠ΅Π½Π΅, Π°ΠΊΠΊΡΡΠ°ΡΠ½ΠΎ ΡΡΠ΅ΠΆΡΡΠ΅ Π³Π΅ΡΠΌΠ΅ΡΠΈΠΊ Π»Π΅Π·Π²ΠΈΠ΅ΠΌ Π±ΡΠΈΡΠ²Ρ, ΡΡΠΎΠ±Ρ ΠΎΡΠ΄Π΅Π»ΠΈΡΡ ΠΏΠ»ΠΈΠ½ΡΡΡ ΠΎΡ ΡΡΠ΅Π½Ρ. ΠΠΊΠΊΡΡΠ°ΡΠ½ΠΎ ΠΏΠΎΠ΄Π΄Π΅Π½ΡΡΠ΅ ΠΊΡΡΠΎΠΊ ΠΎΡ ΡΡΠ΅Π½Ρ Ρ ΠΏΠΎΠΌΠΎΡΡΡ ΠΎΡΠ²Π΅ΡΡΠΊΠΈ ΠΈΠ»ΠΈ ΠΌΠΎΠ½ΡΠΈΡΠΎΠ²ΠΊΠΈ Β«ΠΊΠΎΡΠ°ΡΠΈΠΉ ΠΊΠΎΠ³ΠΎΡΡΒ».
Π‘ΠΎΡ
ΡΠ°Π½ΠΈΡΠ΅ Π΄Π΅ΡΠ°Π»Ρ, Π° ΡΠ°ΠΊΠΆΠ΅ ΠΎΡΠ΄Π΅Π»ΠΎΡΠ½ΡΠ΅ Π³Π²ΠΎΠ·Π΄ΠΈ, ΡΡΠΎΠ±Ρ ΡΡΡΠ°Π½ΠΎΠ²ΠΈΡΡ ΠΈΡ
ΠΏΠΎΠ·ΠΆΠ΅.
ΠΠ±ΡΠ°ΡΠ½ΡΠΉ ΠΏΡΡΡ
ΠΠ»Ρ Π΄ΠΎΡΡΠΈΠΆΠ΅Π½ΠΈΡ Π½Π°ΠΈΠ»ΡΡΡΠΈΡ ΡΠ΅Π·ΡΠ»ΡΡΠ°ΡΠΎΠ² ΠΈΡΠΏΠΎΠ»ΡΠ·ΡΠΉΡΠ΅ ΠΌΠΎΠ½ΡΠΈΡΠΎΠ²ΠΊΡ, ΡΡΠΎΠ±Ρ ΠΏΠΎΠ΄Π½ΡΡΡ ΠΏΠ΅ΡΠ²ΡΠΉ ΡΡΠ΄, Π΅ΡΠ»ΠΈ ΡΠΎΠ»ΡΠΊΠΎ Π²Ρ Π½Π΅ ΠΌΠΎΠΆΠ΅ΡΠ΅ ΡΠ΄Π°Π»ΠΈΡΡ Π΄Π΅ΡΠ°Π»ΠΈ Π²ΡΡΡΠ½ΡΡ.Π Π°Π·Π±Π΅ΡΠΈΡΠ΅ ΡΠ°ΡΡΠΈ ΠΈ Π»ΠΈΠ±ΠΎ ΠΏΡΠΎΠ½ΡΠΌΠ΅ΡΡΠΉΡΠ΅ ΠΈΡ , Π»ΠΈΠ±ΠΎ Π°ΠΊΠΊΡΡΠ°ΡΠ½ΠΎ ΡΠ°Π·Π»ΠΎΠΆΠΈΡΠ΅, ΡΡΠΎΠ±Ρ ΡΠΎΠ±ΡΠ°ΡΡ ΠΏΠΎΠ·ΠΆΠ΅. ΠΡΡΡΠ΅Π³Π½ΠΈΡΠ΅ Π²ΡΠ΅ Π΄Π΅ΡΠ°Π»ΠΈ Π² ΠΏΠ΅ΡΠ²ΠΎΠΌ ΡΡΠ΄Ρ, Π·Π°ΡΠ΅ΠΌ ΠΏΡΠΎΠ΄Π²ΠΈΠ³Π°ΠΉΡΠ΅ΡΡ Π²Π½ΠΈΠ· ΠΏΠΎ Π²ΡΠΎΡΠΎΠΌΡ ΡΡΠ΄Ρ, Π·Π°ΡΠ΅ΠΌ ΠΏΠΎ ΡΡΠ΅ΡΡΠ΅ΠΌΡ ΠΈ ΡΠ°ΠΊ Π΄Π°Π»Π΅Π΅, ΠΏΠΎΠΊΠ° Π½Π΅ Π΄ΠΎΠΉΠ΄Π΅ΡΠ΅ Π΄ΠΎ ΡΡΠ΄Π°, Π² ΠΊΠΎΡΠΎΡΠΎΠΌ Π΅ΡΡΡ ΡΠ²ΠΎΠ±ΠΎΠ΄Π½ΡΠΉ ΡΠ»Π΅ΠΌΠ΅Π½Ρ. ΠΠ°Π±Π»ΠΎΠΊΠΈΡΡΠΉΡΠ΅ Π΅Π³ΠΎ Π²ΠΌΠ΅ΡΡΠ΅ Ρ ΠΎΡΡΠ°Π»ΡΠ½ΡΠΌΠΈ. ΠΡΠ»ΠΈ Π·Π°ΠΏΠΈΡΠ°ΡΡΠΈΠΉ ΠΌΠ΅Ρ Π°Π½ΠΈΠ·ΠΌ ΡΠ»ΠΎΠΌΠ°Π½ ΠΈΠ»ΠΈ ΠΏΠΎΠ²ΡΠ΅ΠΆΠ΄Π΅Π½, ΠΈΡΠΏΠΎΠ»ΡΠ·ΡΠΉΡΠ΅ ΡΡΡΠΎΠΈΡΠ΅Π»ΡΠ½ΡΠΉ ΠΊΠ»Π΅ΠΉ ΠΈΠ»ΠΈ ΠΊΠ»Π΅ΠΉ Π΄Π»Ρ Π»Π°ΠΌΠΈΠ½Π°ΡΠ°, ΡΡΠΎΠ±Ρ Π·Π°ΠΊΡΠ΅ΠΏΠΈΡΡ Π΄Π΅ΡΠ°Π»Ρ Π½Π° ΠΌΠ΅ΡΡΠ΅, ΠΈΠ»ΠΈ Π·Π°ΠΌΠ΅Π½ΠΈΡΠ΅ Π΅Π΅ Π½Π° Π½ΠΎΠ²ΡΡ.
ΠΠ±ΡΠ°ΡΠ½ΡΠΉ ΠΏΡΠΎΡΠ΅ΡΡ
ΠΠΎΡΠ»Π΅ ΡΠΎΠ³ΠΎ, ΠΊΠ°ΠΊ Π²Ρ Π·Π°ΡΠΈΠΊΡΠΈΡΡΠ΅ΡΠ΅ Π½Π΅Π·Π°ΠΊΡΠ΅ΠΏΠ»Π΅Π½Π½ΡΠΉ ΡΠ»Π΅ΠΌΠ΅Π½Ρ, Π½Π°ΡΠ½ΠΈΡΠ΅ ΠΎΠ±ΡΠ°ΡΠ½ΡΠΉ ΠΏΡΠΎΡΠ΅ΡΡ, Π°Π½Π°Π»ΠΎΠ³ΠΈΡΠ½ΡΠΉ ΠΏΠ΅ΡΠ²ΠΎΠΌΡ ΡΠΊΠ»Π°Π΄ΡΠ²Π°Π½ΠΈΡ Π»Π°ΠΌΠΈΠ½Π°ΡΠ°.Π‘ΠΎΠ΅Π΄ΠΈΠ½ΠΈΡΠ΅ Π΄Π΅ΡΠ°Π»ΠΈ Π²ΠΌΠ΅ΡΡΠ΅ ΠΏΠΎ Π΄Π»ΠΈΠ½Π΅, Π° ΡΠ°ΠΊΠΆΠ΅ Π½Π° ΠΊΠ°ΠΆΠ΄ΠΎΠΌ ΠΊΠΎΠ½ΡΠ΅ ΠΈ ΠΏΠ»ΠΎΡΠ½ΠΎ ΠΏΠΎΡΡΡΡΠΈΡΠ΅ ΠΈΠΌΠΈ Π΄ΡΡΠ³ ΠΎ Π΄ΡΡΠ³Π° Ρ ΠΏΠΎΠΌΠΎΡΡΡ ΡΠ΅Π·ΠΈΠ½ΠΎΠ²ΠΎΠ³ΠΎ ΠΌΠΎΠ»ΠΎΡΠΊΠ°. ΠΡΠ΅ΠΆΠ΄Π΅ ΡΠ΅ΠΌ ΡΠ°Π±ΠΎΡΠ°ΡΡ Ρ ΡΠΎΡΠ΅Π΄Π½ΠΈΠΌΠΈ Π΄Π΅ΡΠ°Π»ΡΠΌΠΈ, ΡΠ±Π΅Π΄ΠΈΡΠ΅ΡΡ, ΡΡΠΎ ΠΊΠ°ΠΆΠ΄Π°Ρ Π΄Π΅ΡΠ°Π»Ρ Π½Π°Π΄Π΅ΠΆΠ½ΠΎ Π·Π°ΠΊΡΠ΅ΠΏΠ»Π΅Π½Π° Π½Π° ΠΌΠ΅ΡΡΠ΅.
ΠΡΠΎΠ»ΠΎΠΆΠΈΡΠ΅ ΡΠ²ΠΎΠΉ ΠΏΡΡΡ ΡΡΠ΄ Π·Π° ΡΡΠ΄ΠΎΠΌ ΠΊ ΡΡΠ΅Π½Π΅, Π° Π·Π°ΡΠ΅ΠΌ ΠΏΠ΅ΡΠ΅ΡΡΡΠ°Π½ΠΎΠ²ΠΈΡΠ΅ ΠΏΠ»ΠΈΠ½ΡΡΡ.
ΠΠ°ΠΌΠΈΠ½ΠΈΡΠΎΠ²Π°Π½Π½ΡΠ΅ ΠΏΠΎΠ»Ρ | ΠΡΠ°ΠΊΠ°, ΠΡΡ-ΠΠΎΡΠΊ
ΠΠΎΠ²ΡΠΉ Π»Π°ΠΌΠΈΠ½ΠΈΡΠΎΠ²Π°Π½Π½ΡΠΉ ΠΏΠΎΠ» β ΡΡΠΎ ΠΎΡΠ»ΠΈΡΠ½ΠΎΠ΅ Π²Π»ΠΎΠΆΠ΅Π½ΠΈΠ΅ Π΄Π»Ρ Π»ΡΠ±ΠΎΠΉ ΠΊΠΎΠΌΠ½Π°ΡΡ Π²Π°ΡΠ΅Π³ΠΎ Π΄ΠΎΠΌΠ° ΠΈΠ»ΠΈ ΠΎΡΠΈΡΠ°. ΠΠ΄Π΅ΡΡ, Π² B&B Floor Coverings , ΠΌΡ ΠΏΡΠ΅Π΄Π»Π°Π³Π°Π΅ΠΌ ΡΠΈΡΠΎΠΊΠΈΠΉ Π²ΡΠ±ΠΎΡ Π²ΡΡΠΎΠΊΠΎΠΊΠ°ΡΠ΅ΡΡΠ²Π΅Π½Π½ΡΡ Π»Π°ΠΌΠΈΠ½ΠΈΡΠΎΠ²Π°Π½Π½ΡΡ Π½Π°ΠΏΠΎΠ»ΡΠ½ΡΡ ΠΏΠΎΠΊΡΡΡΠΈΠΉ Π²Π»Π°Π΄Π΅Π»ΡΡΠ°ΠΌ Π½Π΅Π΄Π²ΠΈΠΆΠΈΠΌΠΎΡΡΠΈ ΠΈ ΠΏΠΎΠ΄ΡΡΠ΄ΡΠΈΠΊΠ°ΠΌ ΠΏΠΎ Π²ΡΠ΅ΠΌΡ ΡΠ΅Π³ΠΈΠΎΠ½Ρ.ΠΠ°ΡΠ° ΠΊΠΎΠΌΠ°Π½Π΄Π° ΡΠ°ΠΊΠΆΠ΅ ΠΏΡΠ΅Π΄ΠΎΡΡΠ°Π²Π»ΡΠ΅Ρ ΠΊΠΎΠΌΠΏΠ»Π΅ΠΊΡΠ½ΡΠ΅ ΡΡΠ»ΡΠ³ΠΈ ΠΏΠΎ ΡΡΡΠ°Π½ΠΎΠ²ΠΊΠ΅, ΡΡΠΎ Π΄Π΅Π»Π°Π΅Ρ Π½Π°Ρ Π²ΡΡΡΠ°Π²ΠΎΡΠ½ΡΠΉ Π·Π°Π» Π² ΠΡΠ°ΠΊΠ΅, ΡΡΠ°Ρ ΠΡΡ-ΠΠΎΡΠΊ, Π²Π°ΡΠΈΠΌ ΡΠ½ΠΈΠ²Π΅ΡΡΠ°Π»ΡΠ½ΡΠΌ ΠΌΠ°Π³Π°Π·ΠΈΠ½ΠΎΠΌ Π»Π°ΠΌΠΈΠ½ΠΈΡΠΎΠ²Π°Π½Π½ΡΡ ΠΏΠΎΠ»ΠΎΠ².
ΠΠΎΠ·Π²ΠΎΠ»ΡΡΠ΅ Π½Π°ΠΌ ΠΏΠΎΠΌΠΎΡΡ Π²Π°ΠΌ Π²ΠΎΠΏΠ»ΠΎΡΠΈΡΡ Π²Π°ΡΠΈ ΠΌΠ΅ΡΡΡ ΠΎ Π½Π°ΠΏΠΎΠ»ΡΠ½ΡΡ
ΠΏΠΎΠΊΡΡΡΠΈΡΡ
Π² ΡΠ΅Π°Π»ΡΠ½ΠΎΡΡΡ. ΠΠ΅Π·Π°Π²ΠΈΡΠΈΠΌΠΎ ΠΎΡ ΡΠΎΠ³ΠΎ, ΠΏΡΠ΅Π΄ΠΏΠΎΡΠΈΡΠ°Π΅ΡΠ΅ Π»ΠΈ Π²Ρ ΡΠΎΠ²ΡΠ΅ΠΌΠ΅Π½Π½ΡΠΉ ΠΈΠ»ΠΈ ΠΊΠ»Π°ΡΡΠΈΡΠ΅ΡΠΊΠΈΠΉ Π²ΠΈΠ΄, ΠΎΠ΄ΠΈΠ½ ΠΈΠ· Π½Π°ΡΠΈΡ
Π²ΡΡΠΎΠΊΠΎΠΊΠ²Π°Π»ΠΈΡΠΈΡΠΈΡΠΎΠ²Π°Π½Π½ΡΡ
ΡΠΎΡΡΡΠ΄Π½ΠΈΠΊΠΎΠ² Π³ΠΎΡΠΎΠ² ΠΏΠΎΠΌΠΎΡΡ Π²Π°ΠΌ Π²ΡΠ±ΡΠ°ΡΡ Π»Π°ΠΌΠΈΠ½Π°Ρ, ΡΠΎΠΎΡΠ²Π΅ΡΡΡΠ²ΡΡΡΠΈΠΉ Π²Π°ΡΠ΅ΠΌΡ ΡΠ½ΠΈΠΊΠ°Π»ΡΠ½ΠΎΠΌΡ Π²ΠΊΡΡΡ ΠΈ ΠΏΠΎΡΡΠ΅Π±Π½ΠΎΡΡΡΠΌ. Π Π°ΡΡΠΊΠ°ΠΆΠΈΡΠ΅ Π½Π°ΠΌ ΠΎ ΡΠ²ΠΎΠ΅ΠΌ ΠΎΠ±ΡΠ°Π·Π΅ ΠΆΠΈΠ·Π½ΠΈ ΠΈ Π΄ΠΈΠ·Π°ΠΉΠ½Π΅ΡΡΠΊΠΈΡ
ΠΏΡΠ΅Π΄ΠΏΠΎΡΡΠ΅Π½ΠΈΡΡ
, ΠΈ ΠΌΡ ΠΏΡΠ΅Π΄ΠΎΡΡΠ°Π²ΠΈΠΌ Π²Π°ΠΌ Π½Π° Π²ΡΠ±ΠΎΡ ΡΠΈΡΠΎΠΊΠΈΠΉ Π²ΡΠ±ΠΎΡ Π»Π°ΠΌΠΈΠ½ΠΈΡΠΎΠ²Π°Π½Π½ΡΡ
ΠΏΠΎΠ»ΠΎΠ² ΠΈΠ· Π΄ΠΎΡΠΎΠΊ ΠΈΠ»ΠΈ Π»Π°ΠΌΠΈΠ½Π°ΡΠ½ΡΡ
ΠΏΠ»ΠΈΡΠΎΠΊ.
ΠΠ½ΠΎΠ³ΠΎΡΠΈΡΠ»Π΅Π½Π½ΡΠ΅ ΠΏΡΠ΅ΠΈΠΌΡΡΠ΅ΡΡΠ²Π° Π»Π°ΠΌΠΈΠ½Π°ΡΠ°
ΠΠ°ΠΌΠΈΠ½Π°ΡΠΏΠΎΠ·Π²ΠΎΠ»ΡΠ΅Ρ Π»Π΅Π³ΠΊΠΎ ΠΎΠ±Π½ΠΎΠ²ΠΈΡΡ Π»ΡΠ±ΡΡ ΠΊΠΎΠΌΠ½Π°ΡΡ Π² Π²Π°ΡΠ΅ΠΌ Π΄ΠΎΠΌΠ΅ ΠΈΠ»ΠΈ ΠΎΡΠΈΡΠ΅. ΠΠ°ΡΠ° ΠΊΠΎΠΌΠ°Π½Π΄Π° ΠΏΡΠΎΡΠ΅ΡΡΠΈΠΎΠ½Π°Π»ΠΎΠ² ΠΌΠΎΠΆΠ΅Ρ ΠΏΠΎΠΌΠΎΡΡ Π²Π°ΠΌ Ρ Π²Π°ΡΠΈΠ°Π½ΡΠ°ΠΌΠΈ Π΄ΠΈΠ·Π°ΠΉΠ½Π° ΡΠΎ Π²ΡΠ΅ΠΌΠΈ ΡΠ²Π΅ΡΠ°ΠΌΠΈ ΠΈ ΡΠ΅ΠΊΡΡΡΡΠ°ΠΌΠΈ Π»Π°ΠΌΠΈΠ½Π°ΡΠ°, ΠΊΠΎΡΠΎΡΡΠ΅ Π²Ρ ΠΌΠΎΠΆΠ΅ΡΠ΅ ΠΏΠΎΠΆΠ΅Π»Π°ΡΡ. ΠΠ°ΠΌΠΈΠ½Π°Ρ ΡΠΎΡΠ΅ΡΠ°Π΅Ρ Π² ΡΠ΅Π±Π΅ Π½ΠΈΠ·ΠΊΠΈΠ΅ ΡΠΊΡΠΏΠ»ΡΠ°ΡΠ°ΡΠΈΠΎΠ½Π½ΡΠ΅ ΡΠ°ΡΡ ΠΎΠ΄Ρ, ΠΊΡΠ°ΡΠΎΡΡ ΠΈ Π΄ΠΎΠ»Π³ΠΎΠ²Π΅ΡΠ½ΠΎΡΡΡ Π² ΠΎΠ΄Π½ΠΎΠΌ Π΄ΠΎΡΡΡΠΏΠ½ΠΎΠΌ ΠΏΠΎΠ»Ρ. Π‘ ΡΡΠΈΠΌ ΠΏΡΠΎΡΠ½ΡΠΌ ΠΌΠ°ΡΠ΅ΡΠΈΠ°Π»ΠΎΠΌ Π²Ρ ΠΌΠΎΠΆΠ΅ΡΠ΅ ΠΏΠΎΠ»ΡΡΠΈΡΡ Π°ΡΡΠ΅Π½ΡΠΈΡΠ½ΡΠ΅ ΠΎΡΡΡΠ΅Π½ΠΈΡ ΠΈ Π²Π½Π΅ΡΠ½ΠΈΠΉ Π²ΠΈΠ΄ ΡΠ»ΠΈΡΠ½ΡΡ ΠΏΠΎΠ»ΠΎΠ². Π₯ΠΎΡΠΈΡΠ΅ Π»ΠΈ Π²Ρ Π΄Π΅ΡΠ΅Π²ΠΎ ΠΈΠ»ΠΈ ΠΏΠ»ΠΈΡΠΊΡ, Π»Π°ΠΌΠΈΠ½Π°Ρ ΠΌΠΎΠΆΠ΅Ρ ΡΠ΄ΠΎΠ²Π»Π΅ΡΠ²ΠΎΡΠΈΡΡ Π²Π°ΡΠΈ ΠΏΠΎΡΡΠ΅Π±Π½ΠΎΡΡΠΈ.ΠΠ° ΠΏΠΎΡΠ»Π΅Π΄Π½ΠΈΠ΅ Π½Π΅ΡΠΊΠΎΠ»ΡΠΊΠΎ Π»Π΅Ρ Π»Π°ΠΌΠΈΠ½Π°Ρ ΡΡΠ°Π» ΠΎΠ΄Π½ΠΈΠΌ ΠΈΠ· ΡΠ°ΠΌΡΡ ΠΏΠΎΠΏΡΠ»ΡΡΠ½ΡΡ Π½Π°ΠΏΠΎΠ»ΡΠ½ΡΡ ΠΏΠΎΠΊΡΡΡΠΈΠΉ Π½Π° ΡΡΠ½ΠΊΠ΅. ΠΡΠΎ ΡΠ²ΡΠ·Π°Π½ΠΎ Ρ ΠΏΡΠΎΡΡΠΎΡΠΎΠΉ ΠΎΠ±ΡΠ»ΡΠΆΠΈΠ²Π°Π½ΠΈΡ. ΠΡΡΡΠ΅ ΠΏΠΎΠ»ΠΎΠ², ΠΏΠΎΠ΄ΠΌΠ΅ΡΠ°Π½ΠΈΠ΅ ΠΈ ΡΠ±ΠΎΡΠΊΠ° ΠΏΡΠ»Π΅ΡΠΎΡΠΎΠΌ β ΡΡΠΎ Π²ΡΠ΅, ΡΡΠΎ ΡΡΠ΅Π±ΡΠ΅ΡΡΡ Π΄Π»Ρ ΠΏΠΎΠ΄Π΄Π΅ΡΠΆΠ°Π½ΠΈΡ ΡΠΈΡΡΠΎΡΡ, ΠΏΠΎΡΡΠΎΠΌΡ Π²Π°ΠΌ Π½Π΅ ΠΏΡΠΈΠ΄Π΅ΡΡΡ Π±Π΅ΡΠΏΠΎΠΊΠΎΠΈΡΡΡΡ ΠΎ ΠΏΡΠΎΠ»ΠΈΡΠΎΠΉ ΠΆΠΈΠ΄ΠΊΠΎΡΡΠΈ.
ΠΠ°ΠΌΠΈΠ½Π°Ρ ΠΈΠΌΠ΅Π΅Ρ ΠΏΡΠΎΡΠ½ΡΠΉ Π²Π½Π΅ΡΠ½ΠΈΠΉ Π²ΠΈΠ΄ ΠΈ ΡΠΎΡΡΠΎΠΈΡ ΠΈΠ· ΡΠ΅ΡΡΡΠ΅Ρ
ΠΎΡΠ΄Π΅Π»ΡΠ½ΡΡ
ΡΠ»ΠΎΠ΅Π². ΠΠ½ ΠΈΠ·Π³ΠΎΡΠΎΠ²Π»Π΅Π½ Ρ ΠΎΡΠ½ΠΎΠ²ΠΎΠΉ, Π·Π°ΡΠΈΡΠ°ΡΡΠ΅ΠΉ ΠΎΡ Π²Π»Π°Π³ΠΈ, ΠΈ ΡΠ΅ΡΠ΄ΡΠ΅Π²ΠΈΠ½ΠΎΠΉ, ΡΠΏΠΎΡΠΎΠ±Π½ΠΎΠΉ Π²ΡΠ΄Π΅ΡΠΆΠ°ΡΡ Π΄Π°ΠΆΠ΅ ΡΠ°ΠΌΡΠ΅ ΠΈΠ½ΡΠ΅Π½ΡΠΈΠ²Π½ΡΠ΅ Π½Π°Π³ΡΡΠ·ΠΊΠΈ.
ΠΠ·Π½ΠΎΡΠΎΡΡΠΎΠΉΠΊΠΈΠΉ ΡΠ»ΠΎΠΉ ΠΎΠ±ΡΡΠ½ΠΎ ΠΈΠ·Π³ΠΎΡΠ°Π²Π»ΠΈΠ²Π°Π΅ΡΡΡ ΠΈΠ· ΡΠΌΠ΅ΡΠΈ ΠΌΠ΅Π»Π°Π½ΠΈΠ½ΠΎΠ²ΠΎΠΉ ΡΠΌΠΎΠ»Ρ ΠΈ ΠΎΠΊΡΠΈΠ΄Π° Π°Π»ΡΠΌΠΈΠ½ΠΈΡ, ΠΊΠΎΡΠΎΡΡΠ΅ Π·Π°ΡΠΈΡΠ°ΡΡ ΠΏΠΎΠ» ΠΎΡ ΠΏΡΡΠ΅Π½ ΠΈ Π΄ΡΡΠ³ΠΈΡ
ΠΏΡΡΠ΅Π½.ΠΠ΅ΡΡ
Π½ΠΈΠΉ ΡΠ»ΠΎΠΉ ΡΠ²Π»ΡΠ΅ΡΡΡ Π΄Π΅ΠΊΠΎΡΠ°ΡΠΈΠ²Π½ΡΠΌ, ΠΏΠΎΠ·Π²ΠΎΠ»ΡΡ ΡΠΎΠ·Π΄Π°Π²Π°ΡΡ ΡΠ°Π·Π»ΠΈΡΠ½ΡΠ΅ ΡΠ·ΠΎΡΡ, ΡΠ΅Π°Π»ΠΈΡΡΠΈΡΠ½ΠΎ ΠΈΠΌΠΈΡΠΈΡΡΡΡΠΈΠ΅ Π½Π°ΡΡΡΠ°Π»ΡΠ½ΠΎΠ΅ Π΄Π΅ΡΠ΅Π²ΠΎ ΠΈΠ»ΠΈ ΠΊΠ°ΠΌΠ΅Π½Ρ.
Π Π½Π°ΡΠ΅ΠΌ Π²ΡΡΡΠ°Π²ΠΎΡΠ½ΠΎΠΌ Π·Π°Π»Π΅ ΠΌΡ ΠΏΡΠ΅Π΄Π»Π°Π³Π°Π΅ΠΌ ΡΠΈΡΠΎΠΊΠΈΠΉ Π²ΡΠ±ΠΎΡ Π»Π°ΠΌΠΈΠ½Π°ΡΠ°, Π²ΠΊΠ»ΡΡΠ°Ρ Π»Π°ΠΌΠΈΠ½ΠΈΡΠΎΠ²Π°Π½Π½ΡΠ΅ Π΄ΠΎΡΠΊΠΈ ΠΈ ΠΏΠ»ΠΈΡΠΊΡ. Π£Π·Π½Π°ΠΉΡΠ΅ Π±ΠΎΠ»ΡΡΠ΅ ΠΎ Π½Π°ΡΠ΅ΠΌ Π°ΡΡΠΎΡΡΠΈΠΌΠ΅Π½ΡΠ΅:
ΠΠ°ΠΌΠΈΠ½ΠΈΡΠΎΠ²Π°Π½Π½ΡΠ΅ Π΄ΠΎΡΠΊΠΈ
ΠΠ°ΠΌΠΈΠ½ΠΈΡΠΎΠ²Π°Π½Π½ΡΠ΅ Π΄ΠΎΡΠΊΠΈΠΏΠΎΠ·Π²ΠΎΠ»ΡΡΡ ΠΏΠΎΠ»ΡΡΠΈΡΡ ΡΠΎΡ ΠΆΠ΅ ΡΡΠ°Π΄ΠΈΡΠΈΠΎΠ½Π½ΡΠΉ Π²ΠΈΠ΄, ΡΡΠΎ ΠΈ ΠΏΠ°ΡΠΊΠ΅Ρ, Π½ΠΎ Ρ Π³ΠΎΡΠ°Π·Π΄ΠΎ Π±ΠΎΠ»Π΅Π΅ ΠΏΡΠΎΡΠ½ΡΠΌ Π½Π°ΠΏΠΎΠ»ΡΠ½ΡΠΌ ΠΏΠΎΠΊΡΡΡΠΈΠ΅ΠΌ. ΠΡ ΠΌΠΎΠΆΠ΅ΡΠ΅ Π²ΡΠ±ΡΠ°ΡΡ ΠΈΠ· ΠΌΠ½ΠΎΠΆΠ΅ΡΡΠ²Π° Π΄ΡΠ΅Π²Π΅ΡΠ½ΡΡ Π·Π΅ΡΠ΅Π½, ΡΡΠΎΠ±Ρ ΡΠΎΠΎΡΠ²Π΅ΡΡΡΠ²ΠΎΠ²Π°ΡΡ ΡΡΠΈΠ»Ρ, ΠΊΠΎΡΠΎΡΡΠΉ Π»ΡΡΡΠ΅ Π²ΡΠ΅Π³ΠΎ ΡΠΎΠΎΡΠ²Π΅ΡΡΡΠ²ΡΠ΅Ρ Π²Π°ΡΠΈΠΌ Π²ΠΊΡΡΠ°ΠΌ.ΠΡ Π΄Π΅ΡΠ΅Π²Π΅Π½ΡΠΊΠΎΠ³ΠΎ Π΄ΠΎ ΡΠΎΠ²ΡΠ΅ΠΌΠ΅Π½Π½ΠΎΠ³ΠΎ, Π² Π½Π°ΡΠ΅ΠΌ ΠΎΠ±ΡΠΈΡΠ½ΠΎΠΌ Π°ΡΡΠΎΡΡΠΈΠΌΠ΅Π½ΡΠ΅ Π²Ρ Π½Π°ΠΉΠ΄Π΅ΡΠ΅ ΠΏΡΠ°Π²ΠΈΠ»ΡΠ½ΡΠΉ Π²ΡΠ±ΠΎΡ Π»Π°ΠΌΠΈΠ½Π°ΡΠ° Π΄Π»Ρ Π²Π°Ρ.
ΠΠ°ΠΌΠΈΠ½ΠΈΡΠΎΠ²Π°Π½Π½Π°Ρ ΠΏΠ»ΠΈΡΠΊΠ° Π΄Π»Ρ ΠΏΠΎΠ»Π°
ΠΡΠ΅ΠΈΠΌΡΡΠ΅ΡΡΠ²Π° Π»Π°ΠΌΠΈΠ½Π°ΡΠ°, ΠΈΠΌΠΈΡΠΈΡΡΡΡΠ΅Π³ΠΎ ΠΏΠ»ΠΈΡΠΊΡ, Π²ΠΊΠ»ΡΡΠ°ΡΡ ΠΏΡΠΎΡΡΠΎΡΡ ΠΎΡΠΈΡΡΠΊΠΈ, Π΄ΠΎΠ»Π³ΠΎΠ²Π΅ΡΠ½ΠΎΡΡΡ ΠΈ ΡΠ½ΠΈΠ²Π΅ΡΡΠ°Π»ΡΠ½ΠΎΡΡΡ. ΠΠ°ΠΌΠ΅Π½Ρ ΠΈ ΠΏΠ»ΠΈΡΠΊΠ° ΠΏΡΠΈΠ΄Π°ΡΡ Π±ΠΎΠ³Π°ΡΡΡΠ²ΠΎ Π»ΡΠ±ΠΎΠΌΡ ΠΆΠΈΠ»ΠΎΠΌΡ ΠΏΡΠΎΡΡΡΠ°Π½ΡΡΠ²Ρ, ΠΈ Π½Π°Ρ Π»Π°ΠΌΠΈΠ½Π°Ρ ΡΠΏΠΎΡΠΎΠ±Π΅Π½ ΡΡΠΎ ΠΏΠΎΠ²ΡΠΎΡΠΈΡΡ.
ΠΠ°ΠΆΠ΄ΡΠΉ ΡΡΠ½ΠΊΡΠΈΠΎΠ½Π°Π»ΡΠ½ΡΠΉ ΡΠ»Π΅ΠΌΠ΅Π½Ρ ΠΏΡΠ΅Π΄Π»Π°Π³Π°Π΅Ρ ΡΠ»Π΅Π³Π°Π½ΡΠ½ΠΎΡΡΡ ΡΡΠ°Π΄ΠΈΡΠΈΠΎΠ½Π½ΠΎΠΉ ΠΊΠ΅ΡΠ°ΠΌΠΈΡΠ΅ΡΠΊΠΎΠΉ, ΡΠ°ΡΡΠΎΡΠΎΠ²ΠΎΠΉ ΠΈΠ»ΠΈ ΠΊΠ°ΠΌΠ΅Π½Π½ΠΎΠΉ ΠΏΠ»ΠΈΡΠΊΠΈ. ΠΡΠ±Π΅ΡΠΈΡΠ΅ ΠΈΠ· ΡΠΈΡΠΎΠΊΠΎΠ³ΠΎ ΡΠΏΠ΅ΠΊΡΡΠ° Π΄ΠΈΠ·Π°ΠΉΠ½ΠΎΠ² ΠΈ ΠΌΠΎΠ΄Π΅Π»Π΅ΠΉ.
ΠΠΊΡΠΏΠ΅ΡΡΠ½ΡΠ΅ ΡΡΠ»ΡΠ³ΠΈ ΠΏΠΎ ΡΠΊΠ»Π°Π΄ΠΊΠ΅ Π»Π°ΠΌΠΈΠ½Π°ΡΠ°
ΠΠ°ΡΠ° ΠΊΠΎΠΌΠΏΠ°Π½ΠΈΡ ΠΏΠΎ ΠΏΡΠΎΠΈΠ·Π²ΠΎΠ΄ΡΡΠ²Ρ Π½Π°ΠΏΠΎΠ»ΡΠ½ΡΡ ΠΏΠΎΠΊΡΡΡΠΈΠΉ Π±Π΅ΡΠ΅Ρ Π½Π° ΡΠ΅Π±Ρ Π²ΡΠ΅ ΡΡΠ°ΠΏΡ ΠΏΡΠΎΡΠ΅ΡΡΠ°, ΡΠ°ΠΊ ΡΡΠΎ Π²Π°ΠΌ Π½Π΅ Π½ΡΠΆΠ½ΠΎ Π½ΠΈΡΠ΅Π³ΠΎ Π΄Π΅Π»Π°ΡΡ.ΠΡ Π½Π°ΡΠΈΠ½Π°Π΅ΠΌ Ρ Π±Π΅ΡΠΏΠ»Π°ΡΠ½ΡΡ ΠΊΠΎΠ½ΡΡΠ»ΡΡΠ°ΡΠΈΠΉ Π½Π° Π΄ΠΎΠΌΡ Ρ Π½Π°ΡΠΈΠΌΠΈ ΠΏΡΠΎΡΠ΅ΡΡΠΈΠΎΠ½Π°Π»ΡΠ½ΡΠΌΠΈ Π΄ΠΈΠ·Π°ΠΉΠ½Π΅ΡΠ°ΠΌΠΈ, Π° Π·Π°ΡΠ΅ΠΌ ΠΏΠ΅ΡΠ΅Ρ ΠΎΠ΄ΠΈΠΌ ΠΊ Π²ΡΠ±ΠΎΡΡ ΠΈ ΠΏΡΠΎΠ²Π΅ΡΠΊΠ΅, ΠΊΠΎΡΠΎΡΡΡ Π²ΡΠΏΠΎΠ»Π½ΡΠ΅Ρ Π½Π°Ρ ΡΡΠΏΠ΅ΡΠΈΠ½ΡΠ΅Π½Π΄Π°Π½Ρ Ρ Π±ΠΎΠ»Π΅Π΅ ΡΠ΅ΠΌ ΡΡΠΈΠ΄ΡΠ°ΡΠΈΠ»Π΅ΡΠ½ΠΈΠΌ ΠΎΠΏΡΡΠΎΠΌ. ΠΠ°ΡΠ΅ΠΌ ΠΈΠ΄Π΅Ρ ΡΡΡΠ°Π½ΠΎΠ²ΠΊΠ° Π»Π°ΠΌΠΈΠ½Π°ΡΠ°, ΠΈ ΠΊΠΎΠ³Π΄Π° ΡΡΠΎ Π±ΡΠ΄Π΅Ρ ΡΠ΄Π΅Π»Π°Π½ΠΎ, ΠΌΡ ΠΌΠΎΠΆΠ΅ΠΌ Π΄Π°ΠΆΠ΅ ΠΎΠ±Π΅ΡΠΏΠ΅ΡΠΈΡΡ ΡΠ΅ΠΌΠΎΠ½Ρ ΠΈ ΡΠ΅Ρ Π½ΠΈΡΠ΅ΡΠΊΠΎΠ΅ ΠΎΠ±ΡΠ»ΡΠΆΠΈΠ²Π°Π½ΠΈΠ΅, Π΅ΡΠ»ΠΈ Π²ΠΎΠ·Π½ΠΈΠΊΠ½Π΅Ρ Π½Π΅ΠΎΠ±Ρ ΠΎΠ΄ΠΈΠΌΠΎΡΡΡ. ΠΡΠ΅, ΡΡΠΎ Π²Π°ΠΌ Π½ΡΠΆΠ½ΠΎ, ΠΌΡ ΠΌΠΎΠΆΠ΅ΠΌ Π²Π°ΠΌ ΠΏΠΎΠΌΠΎΡΡ! ΠΡΠΎΡΡΠΎ ΡΠΏΡΠΎΡΠΈΡΠ΅ ΠΎΠ΄Π½ΠΎΠ³ΠΎ ΠΈΠ· Π½Π°ΡΠΈΡ Π΄ΡΡΠΆΠ΅Π»ΡΠ±Π½ΡΡ ΠΏΠ°ΡΡΠ½Π΅ΡΠΎΠ², ΠΈ ΠΌΡ Π±ΡΠ΄Π΅ΠΌ Ρ Π²Π°ΠΌΠΈ ΡΡΠΎΠ»ΡΠΊΠΎ Π²ΡΠ΅ΠΌΠ΅Π½ΠΈ, ΡΠΊΠΎΠ»ΡΠΊΠΎ ΠΏΠΎΡΡΠ΅Π±ΡΠ΅ΡΡΡ, ΡΡΠΎΠ±Ρ ΠΏΡΠ΅Π΄ΠΎΡΡΠ°Π²ΠΈΡΡ Π²Π°ΠΌ ΠΈΠ΄Π΅Π°Π»ΡΠ½ΡΠΉ Π»Π°ΠΌΠΈΠ½ΠΈΡΠΎΠ²Π°Π½Π½ΡΠΉ ΠΏΠΎΠ».
Π£ΠΊΠ»Π°Π΄ΠΊΠ° Π»Π°ΠΌΠΈΠ½Π°ΡΠ° ΠΏΡΠΎΠΈΡΡ
ΠΎΠ΄ΠΈΡ Π½Π°ΠΌΠ½ΠΎΠ³ΠΎ Π±ΡΡΡΡΠ΅Π΅, ΡΠ΅ΠΌ ΡΠΊΠ»Π°Π΄ΠΊΠ° Π΄ΡΡΠ³ΠΈΡ
Π½Π°ΠΏΠΎΠ»ΡΠ½ΡΡ
ΠΏΠΎΠΊΡΡΡΠΈΠΉ.ΠΠΎΠ»ΡΡΠΈΠ½ΡΡΠ²ΠΎ Π»Π°ΠΌΠΈΠ½Π°ΡΠ½ΡΡ
ΠΏΠ»ΠΈΡΠΎΠΊ ΠΈ Π΄ΠΎΡΠΎΠΊ ΠΈΠΌΠ΅ΡΡ Π²ΡΡΡΠΎΠ΅Π½Π½ΡΡ ΡΠΈΡΡΠ΅ΠΌΡ Π±Π»ΠΎΠΊΠΈΡΠΎΠ²ΠΊΠΈ, ΠΊΠΎΡΠΎΡΠ°Ρ ΠΏΠΎΠ·Π²ΠΎΠ»ΡΠ΅Ρ ΡΠ΄ΠΎΠ±Π½ΠΎ ΠΈ Π»Π΅Π³ΠΊΠΎ Π·Π°ΡΠ΅Π»ΠΊΠΈΠ²Π°ΡΡ ΠΊΠ°ΠΆΠ΄ΡΠΉ ΠΊΡΡΠΎΠΊ ΠΌΠ°ΡΠ΅ΡΠΈΠ°Π»Π°, ΠΏΠΎΡΡΠΎΠΌΡ ΠΊΠ»Π΅ΠΉ ΠΈ Π³Π²ΠΎΠ·Π΄ΠΈ ΠΌΠΎΠ³ΡΡ Π΄Π°ΠΆΠ΅ Π½Π΅ ΠΏΠΎΠ½Π°Π΄ΠΎΠ±ΠΈΡΡΡΡ.
Π Π·Π°Π²ΠΈΡΠΈΠΌΠΎΡΡΠΈ ΠΎΡ Π²Π°ΡΠ΅ΠΉ ΡΠΎΠ±ΡΡΠ²Π΅Π½Π½ΠΎΡΡΠΈ, ΠΌΡ ΠΌΠΎΠΆΠ΅ΠΌ Π΄Π°ΠΆΠ΅ ΡΡΡΠ°Π½ΠΎΠ²ΠΈΡΡ Π΅Π³ΠΎ ΠΏΠΎΠ²Π΅ΡΡ
ΡΡΡΠ΅ΡΡΠ²ΡΡΡΠ΅Π³ΠΎ ΠΏΠΎΠ»Π°. ΠΠ΄ΠΈΠ½ΡΡΠ²Π΅Π½Π½ΠΎΠ΅, Π½Π° ΡΡΠΎ Π²Ρ ΠΌΠΎΠΆΠ΅ΡΠ΅ ΡΠ°ΡΡΡΠΈΡΡΠ²Π°ΡΡ, ΡΡΠΎ ΡΠΎ, ΡΡΠΎ ΠΎΠ½ Π±ΡΠ΄Π΅Ρ ΡΡΡΠ°Π½ΠΎΠ²Π»Π΅Π½ ΠΏΡΠ°Π²ΠΈΠ»ΡΠ½ΠΎ Ρ ΠΏΠ΅ΡΠ²ΠΎΠ³ΠΎ ΡΠ°Π·Π°, ΠΏΠΎΡΠΎΠΌΡ ΡΡΠΎ ΠΌΡ ΠΏΡΠΎΡΠ΅ΡΡΠΈΠΎΠ½Π°Π»Ρ, ΠΊΠΎΡΠΎΡΡΠ΅ Π·Π°Π±ΠΎΡΡΡΡΡ ΠΎ Π²Π°ΡΠ΅ΠΌ ΡΠ΄ΠΎΠ²Π»Π΅ΡΠ²ΠΎΡΠ΅Π½ΠΈΠΈ.
Π‘Π²ΡΠΆΠΈΡΠ΅ΡΡ Ρ Π½Π°ΠΌΠΈ ΠΏΠΎ ΡΠ΅Π»Π΅ΡΠΎΠ½Ρ , ΡΡΠΎΠ±Ρ ΠΏΠΎΠ»ΡΡΠΈΡΡ ΠΊΠΎΠ½ΡΡΠ»ΡΡΠ°ΡΠΈΡ ΠΏΠΎ ΠΏΠΎΠ²ΠΎΠ΄Ρ Π²Π°ΡΠ΅Π³ΠΎ Π½ΠΎΠ²ΠΎΠ³ΠΎ Π½Π°ΠΏΠΎΠ»ΡΠ½ΠΎΠ³ΠΎ ΠΏΠΎΠΊΡΡΡΠΈΡ.ΠΡ ΠΏΡΠΎΠ΄Π°Π΅ΠΌ ΠΈ ΡΠΊΠ»Π°Π΄ΡΠ²Π°Π΅ΠΌ Π»Π°ΠΌΠΈΠ½Π°Ρ ΠΏΠΎ Π²ΡΠ΅ΠΉ ΠΡΠ°ΠΊΠ΅, ΠΡΠ°ΠΉΠ΄Π΅Π½Ρ, ΠΠΎΡΡΠ»Π΅Π½Π΄Ρ ΠΈ Π‘ΠΊΠ°Π½Π΅Π°ΡΠ΅Π»Π΅ΡΡ, ΡΡΠ°Ρ ΠΡΡ-ΠΠΎΡΠΊ, ΠΈ Π±Π»ΠΈΠ·Π»Π΅ΠΆΠ°ΡΠΈΠΌ ΡΠ°ΠΉΠΎΠ½Π°ΠΌ.
ΠΠ°ΠΌΠΈΠ½ΠΈΡΠΎΠ²Π°Π½Π½ΡΠ΅ ΠΏΠΎΠ»Ρ β Π²ΡΠ΅, ΡΡΠΎ Π²Π°ΠΌ Π½ΡΠΆΠ½ΠΎ Π·Π½Π°ΡΡ
ΠΡΠ»ΠΈ Π²Ρ ΠΏΠ»Π°Π½ΠΈΡΡΠ΅ΡΠ΅ ΠΎΠ±Π½ΠΎΠ²ΠΈΡΡ ΠΏΠΎΠ»Ρ Π² ΡΠ²ΠΎΠ΅ΠΌ Π΄ΠΎΠΌΠ΅, Π»Π°ΠΌΠΈΠ½Π°Ρ ΠΌΠΎΠΆΠ΅Ρ ΡΡΠ°ΡΡ ΠΎΡΠ»ΠΈΡΠ½ΡΠΌ Π²ΡΠ±ΠΎΡΠΎΠΌ. ΠΡΠΎΡ ΠΏΡΠΎΡΠ½ΡΠΉ ΠΏΠΎΠ» ΠΏΡΠ΅Π΄ΡΡΠ°Π²Π»Π΅Π½ Π² ΡΠΈΡΠΎΠΊΠΎΠΌ ΡΠ°Π·Π½ΠΎΠΎΠ±ΡΠ°Π·ΠΈΠΈ ΡΠ²Π΅ΡΠΎΠ², ΡΡΠΈΠ»Π΅ΠΉ ΠΈ ΡΡΠΎΠ²Π½Π΅ΠΉ ΠΊΠ°ΡΠ΅ΡΡΠ²Π°. ΠΡΠ΅ΠΆΠ΄Π΅ ΡΠ΅ΠΌ ΡΠ΄Π΅Π»Π°ΡΡ ΡΠ΅ΡΠ°ΡΡΠΈΠΉ ΡΠ°Π³ ΠΈ ΠΏΠ΅ΡΠ΅ΡΡΡΠΎΠΈΡΡ ΡΠ²ΠΎΠΉ Π΄ΠΎΠΌ, Π²Π°ΠΆΠ½ΠΎ ΡΠ·Π½Π°ΡΡ Π±ΠΎΠ»ΡΡΠ΅ ΠΎΠ± ΡΡΠΎΠΌ ΡΠΈΠΏΠ΅ Π½Π°ΠΏΠΎΠ»ΡΠ½ΠΎΠ³ΠΎ ΠΏΠΎΠΊΡΡΡΠΈΡ, ΡΡΠΎΠ±Ρ Π²Ρ ΠΌΠΎΠ³Π»ΠΈ ΡΠ΅ΡΠΈΡΡ, ΠΏΠΎΠ΄Ρ
ΠΎΠ΄ΠΈΡ Π»ΠΈ ΠΎΠ½ Π²Π°ΠΌ.ΠΡ ΡΡΠΈΠ»Ρ ΠΈ ΡΠΎΡΠ³ΠΎΠ²ΡΡ
ΠΌΠ°ΡΠΎΠΊ Π΄ΠΎ ΠΏΠ»ΡΡΠΎΠ² ΠΈ ΠΌΠΈΠ½ΡΡΠΎΠ² β ΡΠΈΡΠ°ΠΉΡΠ΅ Π΄Π°Π»ΡΡΠ΅, ΡΡΠΎΠ±Ρ ΡΠ·Π½Π°ΡΡ Π²ΡΠ΅, ΡΡΠΎ Π²Π°ΠΌ Π½ΡΠΆΠ½ΠΎ Π·Π½Π°ΡΡ ΠΎ Π»Π°ΠΌΠΈΠ½Π°ΡΠ΅.
ΠΠ°ΠΌΠΈΠ½Π°Ρ β ΡΡΠΎ Π³ΠΈΠ±ΡΠΈΠ΄Π½ΡΠΉ ΠΏΠΎΠ», ΡΠΎ Π΅ΡΡΡ ΠΎΠ½ ΡΠΎΡΡΠΎΠΈΡ ΠΈΠ· Π½Π΅ΡΠΊΠΎΠ»ΡΠΊΠΈΡ ΠΌΠ°ΡΠ΅ΡΠΈΠ°Π»ΠΎΠ² Π² ΠΎΠ΄Π½ΠΎΠΌ. ΠΡΠΈ ΠΏΠΎΠ»Ρ ΠΈΠ·Π³ΠΎΡΠΎΠ²Π»Π΅Π½Ρ ΠΈΠ· Π΄ΡΠ΅Π²Π΅ΡΠ½ΠΎ-ΡΡΡΡΠΆΠ΅ΡΠ½ΠΎΠΉ ΠΏΠ»ΠΈΡΡ, ΠΏΠΎΠΊΡΡΡΠΎΠΉ Β«ΡΠ»ΠΎΠ΅ΠΌ ΠΈΠ·ΠΎΠ±ΡΠ°ΠΆΠ΅Π½ΠΈΡΒ» ΠΈ Π·Π°ΡΠΈΡΠ½ΡΠΌ ΠΏΠΎΠΊΡΡΡΠΈΠ΅ΠΌ Π΄Π»Ρ Π·Π°ΡΠΈΡΡ. ΠΡΠΎ Π½Π°ΠΏΠΎΠ»ΡΠ½ΠΎΠ΅ ΠΏΠΎΠΊΡΡΡΠΈΠ΅ ΠΌΠΎΠΆΠ½ΠΎ ΡΡΡΠ°Π½ΠΎΠ²ΠΈΡΡ Π² Π»ΡΠ±ΠΎΠΉ ΠΊΠΎΠΌΠ½Π°ΡΠ΅ Π²Π°ΡΠ΅Π³ΠΎ Π΄ΠΎΠΌΠ°, ΡΡΠΎ ΠΏΠΎΠ·Π²ΠΎΠ»ΡΠ΅Ρ Π»Π΅Π³ΠΊΠΎ ΡΠΎΠ·Π΄Π°ΡΡ ΡΠ΅Π»ΡΠ½ΡΠΉ Π²ΠΈΠ΄.ΠΠ°ΠΌΠΈΠ½ΠΈΡΠΎΠ²Π°Π½Π½ΡΠ΅ ΠΏΠΎΠ»Ρ Π±ΡΠ»ΠΈ ΠΈΠ·ΠΎΠ±ΡΠ΅ΡΠ΅Π½Ρ Π² 1977 Π³ΠΎΠ΄Ρ, Π½ΠΎ ΠΎΠ½ΠΈ Π΄ΠΎ ΡΠΈΡ ΠΏΠΎΡ ΠΎΡΡΠ°ΡΡΡΡ ΠΏΠΎΠΏΡΠ»ΡΡΠ½ΡΠΌ ΠΏΡΠΎΠ΄ΡΠΊΡΠΎΠΌ, ΡΠΈΡΠΎΠΊΠΎ ΠΈΡΠΏΠΎΠ»ΡΠ·ΡΠ΅ΠΌΡΠΌ Π²ΠΎ ΠΌΠ½ΠΎΠ³ΠΈΡ Π΄ΠΎΠΌΠ°Ρ . Π‘ΠΎΡΠ΅ΡΠ°Π½ΠΈΠ΅ ΡΠ΅ΠΏΠ»Π°, Π²ΡΡΠΎΠΊΠΎΠ³ΠΎ Π΄Π°Π²Π»Π΅Π½ΠΈΡ ΠΈ ΡΠ²ΡΠ·ΡΠ²Π°ΡΡΠΈΡ Ρ ΠΈΠΌΠΈΠΊΠ°ΡΠΎΠ² Π΄Π΅Π»Π°Π΅Ρ Π»Π°ΠΌΠΈΠ½Π°Ρ ΡΠ°ΠΊΠΈΠΌ ΡΠ½ΠΈΠΊΠ°Π»ΡΠ½ΡΠΌ. ΠΠ½ΠΎΠ³ΠΈΠ΅ ΡΠΎΡΠ³ΠΎΠ²ΡΠ΅ ΠΌΠ°ΡΠΊΠΈ, Π²ΠΊΠ»ΡΡΠ°Ρ Mohawk, Shaw ΠΈ Armstrong, ΠΏΡΠ΅Π΄Π»Π°Π³Π°ΡΡ Π»Π°ΠΌΠΈΠ½ΠΈΡΠΎΠ²Π°Π½Π½ΡΠ΅ ΠΏΠΎΠ»Ρ ΠΏΠΎΠ΄ΡΡΠ΄ΡΠΈΠΊΠ°ΠΌ ΠΈ Π΄ΠΎΠΌΠΎΠ²Π»Π°Π΄Π΅Π»ΡΡΠ°ΠΌ.
Π’ΠΈΠΏΡ ΠΈ ΡΡΠΈΠ»ΠΈ Π»Π°ΠΌΠΈΠ½ΠΈΡΠΎΠ²Π°Π½Π½ΡΡ ΠΏΠΎΠ»ΠΎΠ² ΠΡ ΠΌΠΎΠΆΠ΅ΡΠ΅ Π½Π°ΠΉΡΠΈ Π»Π°ΠΌΠΈΠ½Π°Ρ ΡΠ°ΠΌΡΡ
ΡΠ°Π·Π½ΡΡ
ΡΠΎΡΠΌΠ°ΡΠΎΠ², ΡΠ°Π·ΠΌΠ΅ΡΠΎΠ² ΠΈ ΡΡΠΈΠ»Π΅ΠΉ. ΠΡΠ΄Ρ ΡΠΎ ΠΎΠ±Π½ΠΎΠ²Π»Π΅Π½ΠΈΠ΅ Π²Π°ΡΠ΅ΠΉ ΠΊΡΡ
Π½ΠΈ ΠΈΠ»ΠΈ Π²ΡΠ΅Π³ΠΎ Π΄ΠΎΠΌΠ°, Π΅ΡΡΡ Π½Π΅ΡΠΊΠΎΠ»ΡΠΊΠΎ ΠΊΠ»ΡΡΠ΅Π²ΡΡ
Ρ
Π°ΡΠ°ΠΊΡΠ΅ΡΠΈΡΡΠΈΠΊ, Π½Π° ΠΊΠΎΡΠΎΡΡΠ΅ ΡΠ»Π΅Π΄ΡΠ΅Ρ ΠΎΠ±ΡΠ°ΡΠ°ΡΡ Π²Π½ΠΈΠΌΠ°Π½ΠΈΠ΅, ΡΡΠΎΠ±Ρ ΡΠ±Π΅Π΄ΠΈΡΡΡΡ, ΡΡΠΎ Π²Ρ Π²ΡΠ±ΡΠ°Π»ΠΈ ΠΏΡΠ°Π²ΠΈΠ»ΡΠ½ΡΠΉ Π»Π°ΠΌΠΈΠ½Π°Ρ Π΄Π»Ρ ΡΠ²ΠΎΠΈΡ
Π½ΡΠΆΠ΄.
ΠΠ²Π° ΠΎΡΠ½ΠΎΠ²Π½ΡΡ
ΡΠΈΠΏΠ° Π»Π°ΠΌΠΈΠ½ΠΈΡΠΎΠ²Π°Π½Π½ΡΡ
ΠΏΠΎΠ»ΠΎΠ² ΠΈΠ·Π³ΠΎΡΠ°Π²Π»ΠΈΠ²Π°ΡΡΡΡ ΠΈΠ· ΠΈΠ½ΠΆΠ΅Π½Π΅ΡΠ½ΠΎΠΉ Π΄ΡΠ΅Π²Π΅ΡΠΈΠ½Ρ ΠΈΠ»ΠΈ ΠΏΠ»Π°ΡΡΠΈΠΊΠ°. ΠΠΎΠ»Ρ ΠΈΠ· ΠΈΠ½ΠΆΠ΅Π½Π΅ΡΠ½ΠΎΠ³ΠΎ Π»Π°ΠΌΠΈΠ½Π°ΡΠ° ΠΌΠΎΠΆΠ½ΠΎ ΠΎΠ±Π½ΠΎΠ²Π»ΡΡΡ Π½Π΅ΡΠΊΠΎΠ»ΡΠΊΠΎ ΡΠ°Π·, ΡΠ»ΠΈΡΡΡ Π²Π΅ΡΡ
Π½ΠΈΠΉ ΡΠ»ΠΎΠΉ ΠΈ Π½Π°Π½ΠΎΡΡ Π½ΠΎΠ²ΡΡ ΠΎΡΠ΄Π΅Π»ΠΊΡ. ΠΠ»Π°ΡΡΠΈΠΊΠΎΠ²ΡΠΉ Π»Π°ΠΌΠΈΠ½Π°Ρ Π½Π΅ ΠΏΠΎΠ΄Π»Π΅ΠΆΠΈΡ ΠΏΠΎΠ²ΡΠΎΡΠ½ΠΎΠΉ ΠΎΡΠ΄Π΅Π»ΠΊΠ΅, Π½ΠΎ ΠΎΠ±ΡΡΠ½ΠΎ ΠΎΠ½ Π΄Π΅ΡΠ΅Π²Π»Π΅, ΡΠ΅ΠΌ Π»Π°ΠΌΠΈΠ½Π°Ρ ΠΈΠ· Π΄Π΅ΡΠ΅Π²Π°. ΠΠ±Π° ΠΏΡΠΈΠ΄Π°Π΄ΡΡ Π²Π°ΠΌ Π²ΠΈΠ΄ Π½Π°ΡΡΠΎΡΡΠ΅Π³ΠΎ Π΄Π΅ΡΠ΅Π²Π° Π±Π΅Π· Π½Π΅ΠΎΠ±Ρ
ΠΎΠ΄ΠΈΠΌΠΎΡΡΠΈ Π»ΠΈΡΠ½Π΅Π³ΠΎ ΡΡ
ΠΎΠ΄Π°. Π ΠΎΡΠ»ΠΈΡΠΈΠ΅ ΠΎΡ ΡΠ²Π΅ΡΠ΄ΠΎΠΉ Π΄ΡΠ΅Π²Π΅ΡΠΈΠ½Ρ, Π½Π° ΠΏΠΎΠ»Ρ ΠΈΠ· Π»Π°ΠΌΠΈΠ½Π°ΡΠ° Π½Π΅ Π½ΡΠΆΠ½ΠΎ Π½Π°Π½ΠΎΡΠΈΡΡ Π³Π΅ΡΠΌΠ΅ΡΠΈΠΊ.
ΠΡΠΈ ΠΏΠΎΠ»Ρ ΠΈΠΌΠ΅ΡΡ ΡΠ°Π·Π»ΠΈΡΠ½ΡΡ ΡΠΎΠ»ΡΠΈΠ½Ρ ΠΎΡ 6 Π΄ΠΎ 12 ΠΌΠΌ.ΠΠ·ΠΌΠ΅ΡΠ΅Π½ΠΈΠ΅ ΠΏΡΠΎΠ²ΠΎΠ΄ΠΈΡΡΡ ΠΎΡ ΠΎΡΠ½ΠΎΠ²Π°Π½ΠΈΡ Π΄ΠΎ Π²Π΅ΡΡ
Π° Π΄ΠΎΡΠΊΠΈ ΠΈ Π½Π΅ Π²ΠΊΠ»ΡΡΠ°Π΅Ρ ΠΏΠΎΠ΄Π»ΠΎΠΆΠΊΡ. Π§Π΅ΠΌ ΡΠΎΠ»ΡΠ΅ Π²Π°ΡΠΈ ΠΏΠΎΠ»Ρ, ΡΠ΅ΠΌ Π±ΠΎΠ»Π΅Π΅ ΡΠ΄Π°ΡΠΎΠΏΡΠΎΡΠ½ΡΠΌΠΈ ΠΎΠ½ΠΈ Π±ΡΠ΄ΡΡ. ΠΠΎΠ»Π΅Π΅ ΡΠΎΠ»ΡΡΡΠΉ Π»Π°ΠΌΠΈΠ½Π°Ρ ΡΠ°ΠΊΠΆΠ΅ Π»ΡΡΡΠ΅ ΡΠ½ΠΈΠΆΠ°Π΅Ρ ΡΡΠΎΠ²Π΅Π½Ρ ΡΡΠΌΠ°, ΡΡΠΎ Π΄Π΅Π»Π°Π΅Ρ Π΅Π³ΠΎ ΠΈΠ΄Π΅Π°Π»ΡΠ½ΡΠΌ Π΄Π»Ρ ΡΠΊΠ»Π°Π΄ΠΊΠΈ Π½Π° Π²ΡΠΎΡΠΎΠΌ ΡΡΠ°ΠΆΠ΅. ΠΡ ΠΌΠΎΠΆΠ΅ΡΠ΅ Π½Π°ΠΉΡΠΈ Π»Π°ΠΌΠΈΠ½ΠΈΡΠΎΠ²Π°Π½Π½ΡΠ΅ ΠΏΠΎΠ»Ρ Π² ΡΡΠΈΠ»Π΅ Π΄ΠΎΡΠΎΠΊ, ΠΊΠΎΡΠΎΡΡΠ΅ Π²ΠΎΡΡΠΎΠ·Π΄Π°ΡΡ Π²Π½Π΅ΡΠ½ΠΈΠΉ Π²ΠΈΠ΄ Π½Π°ΡΡΠΎΡΡΠ΅Π³ΠΎ Π΄Π΅ΡΠ΅Π²Π°. ΠΠ°ΠΏΠΎΠ»ΡΠ½Π°Ρ ΠΏΠ»ΠΈΡΠΊΠ° ΠΈΠ· Π»Π°ΠΌΠΈΠ½Π°ΡΠ° ΠΈΠ΄Π΅Π°Π»ΡΠ½Π°, Π΅ΡΠ»ΠΈ Π²Ρ ΠΏΡΠ΅Π΄ΠΏΠΎΡΠΈΡΠ°Π΅ΡΠ΅ ΡΡΡΠ΅ΡΠΈΠΊΡ ΠΊΠ°ΠΌΠ½Ρ ΠΈΠ»ΠΈ ΠΊΠ΅ΡΠ°ΠΌΠΈΡΠ΅ΡΠΊΠΎΠΉ ΠΏΠ»ΠΈΡΠΊΠΈ Π² ΡΠ²ΠΎΠ΅ΠΌ Π΄ΠΎΠΌΠ΅. ΠΡ ΡΠ°ΠΊΠΆΠ΅ ΠΌΠΎΠΆΠ΅ΡΠ΅ Π²ΡΠ±ΡΠ°ΡΡ ΠΌΠ΅ΠΆΠ΄Ρ ΠΌΠ°ΡΠΎΠ²ΠΎΠΉ ΠΈΠ»ΠΈ Π³Π»ΡΠ½ΡΠ΅Π²ΠΎΠΉ ΠΏΠΎΠ²Π΅ΡΡ
Π½ΠΎΡΡΡΡ, Π² Π·Π°Π²ΠΈΡΠΈΠΌΠΎΡΡΠΈ ΠΎΡ ΠΆΠ΅Π»Π°Π΅ΠΌΠΎΠ³ΠΎ Π²Π½Π΅ΡΠ½Π΅Π³ΠΎ Π²ΠΈΠ΄Π°.
ΠΡΠΈΡΠΌΠΎΡΡΠΈΡΠ΅ΡΡ ΠΊ ΡΠ΅Π½Π°ΠΌ, ΡΡΠΎΠ±Ρ Π½Π°ΠΉΡΠΈ ΠΏΡΠ°Π²ΠΈΠ»ΡΠ½ΡΠΉ ΡΠΎΡΡΠ°Π² Π»Π°ΠΌΠΈΠ½Π°ΡΠ°, ΡΠΎΠ»ΡΠΈΠ½Ρ ΠΈ Π΄ΠΈΠ·Π°ΠΉΠ½.
ΠΡΡ ΠΎΠ½Π½ΡΠΉ Π»Π°ΠΌΠΈΠ½Π°Ρ
ΠΡΠ»ΠΈ Π²Ρ ΡΠΊΠ»Π°Π΄ΡΠ²Π°Π΅ΡΠ΅ Π»Π°ΠΌΠΈΠ½Π°Ρ Π½Π° ΠΊΡΡ Π½Π΅, Π²ΡΠ±Π΅ΡΠΈΡΠ΅ ΡΠ²Π΅Ρ, ΠΊΠΎΡΠΎΡΡΠΉ Π±ΡΠ΄Π΅Ρ Π»Π΅Π³ΠΊΠΎ ΡΠΎΡΠ΅ΡΠ°ΡΡΡΡ Ρ Π²Π°ΡΠΈΠΌΠΈ ΡΠΊΠ°ΡΠ°ΠΌΠΈ ΠΈ ΡΡΠΎΠ»Π΅ΡΠ½ΠΈΡΠ°ΠΌΠΈ. Π£Π±Π΅Π΄ΠΈΡΠ΅ΡΡ, ΡΡΠΎ Π² ΠΏΠ΅ΡΠ²ΡΡ ΠΎΡΠ΅ΡΠ΅Π΄Ρ ΡΡΡΠ°Π½ΠΎΠ²Π»Π΅Π½Π° ββΠΏΠΎΠ΄Π»ΠΎΠΆΠΊΠ°, ΡΡΠΎΠ±Ρ Π·Π°ΡΠΈΡΠΈΡΡ ΠΎΡΠ½ΠΎΠ²Π°Π½ΠΈΠ΅ ΠΏΠΎΠ»Π° ΠΎΡ Π²Π»Π°Π³ΠΈ ΠΈ ΠΏΠΎΠ²ΡΠ΅ΠΆΠ΄Π΅Π½ΠΈΠΉ. Π§ΡΠΎΠ±Ρ ΡΠΎΡ ΡΠ°Π½ΠΈΡΡ Π»Π°ΠΌΠΈΠ½Π°Ρ Π½Π° ΠΊΡΡ Π½Π΅ Π² ΡΠΈΡΡΠΎΡΠ΅, Π½Π΅ΠΌΠ΅Π΄Π»Π΅Π½Π½ΠΎ Π²ΡΡΠΈΡΠ°ΠΉΡΠ΅ ΠΈΠ»ΠΈ ΠΏΡΠΎΠΌΠΎΠΊΠ½ΠΈΡΠ΅ ΠΏΡΡΠ½ΠΎ. Π Π΅Π³ΡΠ»ΡΡΠ½ΠΎΠ΅ Π²ΡΡΠΈΡΠ°Π½ΠΈΠ΅ ΠΏΡΠ»ΠΈ, ΠΏΠΎΠ΄ΠΌΠ΅ΡΠ°Π½ΠΈΠ΅ ΠΈΠ»ΠΈ ΡΠΈΡΡΠΊΠ° ΠΏΠΎΠ»ΠΎΠ² ΠΏΡΠ»Π΅ΡΠΎΡΠΎΠΌ Π½Π΅ ΠΏΠΎΠ·Π²ΠΎΠ»ΠΈΡ ΠΌΡΡΠΎΡΡ ΠΈ Π΅Π΄Π΅ ΠΏΠΎΡΠ°ΡΠ°ΠΏΠ°ΡΡ Π·Π°ΡΠΈΡΠ½ΡΠΉ ΡΠ»ΠΎΠΉ ΠΈ ΡΠΌΠ΅Π½ΡΡΠΈΡ Π½Π°ΠΊΠΎΠΏΠ»Π΅Π½ΠΈΠ΅ Π³ΡΡΠ·ΠΈ ΠΈ ΠΊΠΎΠΏΠΎΡΠΈ.
Π‘Π΅ΡΡΠΉ Π»Π°ΠΌΠΈΠ½Π°Ρ
Π‘ΡΠ΅Π΄ΠΈ ΠΌΠΎΠ΄Π½ΡΡ
ΡΠ²Π΅ΡΠΎΠ² Π½Π°ΠΈΠ±ΠΎΠ»Π΅Π΅ ΠΏΠΎΠΏΡΠ»ΡΡΠ½ΡΠΌ ΡΠ²Π»ΡΠ΅ΡΡΡ ΡΠ΅ΡΡΠΉ. ΠΡ ΠΌΠΎΠΆΠ΅ΡΠ΅ Π½Π°ΠΉΡΠΈΒ ΡΠ΅ΡΡΠΉ Π»Π°ΠΌΠΈΠ½Π°ΡΒ Π² ΡΠ°Π·Π»ΠΈΡΠ½ΡΡ
ΠΎΡΡΠ΅Π½ΠΊΠ°Ρ
, ΠΎΡ ΡΠΎΡΡΠ°ΡΠ΅Π½Π½ΡΡ
ΠΈ ΡΠ²Π΅ΡΠ»ΡΡ
Π΄ΠΎ ΡΠ΅ΠΌΠ½ΡΡ
ΠΈ ΡΠΎΠ²ΡΠ΅ΠΌΠ΅Π½Π½ΡΡ
. Π‘Π΅ΡΡΠΉ Π»Π°ΠΌΠΈΠ½Π°Ρ ΠΏΡΠΈΠ΄Π°ΡΡ Π²Π°ΡΠ΅ΠΌΡ Π΄ΠΎΠΌΡ ΡΠΎΠ²ΡΠ΅ΠΌΠ΅Π½Π½ΡΠΉ Π²ΠΈΠ΄ ΠΈ ΠΎΡΠ»ΠΈΡΠ½ΠΎ ΡΠΊΡΠΎΠ΅Ρ Π½Π΅Π΄ΠΎΡΡΠ°ΡΠΊΠΈ. Π£Π±Π΅Π΄ΠΈΡΠ΅ΡΡ, ΡΡΠΎ Π²Ρ Π²ΡΠ±ΡΠ°Π»ΠΈ ΡΠ΅ΡΡΠΉ ΡΠ²Π΅Ρ, ΠΊΠΎΡΠΎΡΡΠΉ Π±ΡΠ΄Π΅Ρ Ρ
ΠΎΡΠΎΡΠΎ ΡΠΎΡΠ΅ΡΠ°ΡΡΡΡ Ρ ΡΠ²Π΅ΡΠΎΠΌ ΡΡΠ΅Π½, ΠΌΠ΅Π±Π΅Π»ΡΡ ΠΈ Π΄ΡΡΠ³ΠΈΠΌ Π΄Π΅ΠΊΠΎΡΠΎΠΌ. ΠΠΎΠ»ΡΡΠΈΠ½ΡΡΠ²ΠΎ Π½Π°ΠΏΠΎΠ»ΡΠ½ΡΡ
ΠΏΠΎΠΊΡΡΡΠΈΠΉ ΠΈΠ· ΡΠ΅ΡΠΎΠ³ΠΎ Π»Π°ΠΌΠΈΠ½Π°ΡΠ° Π²ΡΠ³Π»ΡΠ΄ΡΡ ΠΊΠ°ΠΊ Π΄Π΅ΡΠ΅Π²ΠΎ Ρ ΡΠ΅ΡΠΎΠΉ ΠΎΡΠ΄Π΅Π»ΠΊΠΎΠΉ.
ΠΡΠΎ ΡΠΎΠ·Π΄Π°ΡΡ Π΄Π΅ΡΠ΅Π²Π΅Π½ΡΠΊΠΈΠΉ, ΡΠ΅ΠΏΠ»ΡΠΉ Π²ΠΈΠ΄ Π² Π»ΡΠ±ΠΎΠΉ ΠΊΠΎΠΌΠ½Π°ΡΠ΅ Π²Π°ΡΠ΅Π³ΠΎ Π΄ΠΎΠΌΠ°.
ΠΠ°ΠΌΠΈΠ½ΠΈΡΠΎΠ²Π°Π½Π½ΡΠΉ ΠΏΠΎΠ» Π΄Π»Ρ Π²Π°Π½Π½ΠΎΠΉ ΠΊΠΎΠΌΠ½Π°ΡΡ
ΠΠΎΠ³Π΄Π° Π΄Π΅Π»ΠΎ Π΄ΠΎΡ ΠΎΠ΄ΠΈΡ Π΄ΠΎ Π²ΡΠ±ΠΎΡΠ° Π»Π°ΠΌΠΈΠ½Π°ΡΠ° Π΄Π»Ρ Π²Π°Π½Π½ΠΎΠΉ ΠΊΠΎΠΌΠ½Π°ΡΡ, ΡΠ±Π΅Π΄ΠΈΡΠ΅ΡΡ, ΡΡΠΎ Π²Ρ Π²ΡΠ±ΡΠ°Π»ΠΈ Π²ΠΎΠ΄ΠΎΡΡΠΎΠΉΠΊΠΈΠΉ ΡΡΠΈΠ»Ρ. ΠΡΠ±ΠΈΡΠ°ΠΉΡΠ΅ Π½Π°ΠΏΠΎΠ»ΡΠ½ΠΎΠ΅ ΠΏΠΎΠΊΡΡΡΠΈΠ΅ Ρ ΠΊΠ°ΡΠ΅ΡΡΠ²Π΅Π½Π½ΡΠΌ Π·Π°ΡΠΈΡΠ½ΡΠΌ ΡΠ»ΠΎΠ΅ΠΌ, ΠΊΠΎΡΠΎΡΡΠΉ Π½Π΅ ΠΏΠΎΠ·Π²ΠΎΠ»ΠΈΡ Π²ΠΎΠ΄Π΅ ΠΏΡΠΎΠ½ΠΈΠΊΠ½ΡΡΡ ΠΏΠΎΠ΄ ΠΏΠΎΠ»Ρ. ΠΠ΅ΠΊΠΎΡΠΎΡΡΠ΅ Π±ΡΠ΅Π½Π΄Ρ ΠΏΡΠ΅Π΄Π»Π°Π³Π°ΡΡ Π²Π½ΡΡΠΈΡΠ΅Π»ΡΠ½ΡΠ΅ Π³Π°ΡΠ°Π½ΡΠΈΠΈ Π½Π° ΡΠ²ΠΎΠΈ Π½Π°ΠΏΠΎΠ»ΡΠ½ΡΠ΅ ΠΏΠΎΠΊΡΡΡΠΈΡ, ΠΏΠΎΡΡΠΎΠΌΡ Π²ΡΠ±ΠΈΡΠ°ΠΉΡΠ΅ ΠΏΡΠΎΠΈΠ·Π²ΠΎΠ΄ΠΈΡΠ΅Π»Ρ, ΠΊΠΎΡΠΎΡΡΠΉ ΠΏΠΎΠΌΠΎΠΆΠ΅Ρ Π²Π°ΠΌ Π·Π°ΡΠΈΡΠΈΡΡ Π²Π°ΡΠΈ ΠΈΠ½Π²Π΅ΡΡΠΈΡΠΈΠΈ, ΠΏΡΠ΅Π΄ΠΎΡΡΠ°Π²ΠΈΠ² 10-Π»Π΅ΡΠ½ΡΡ ΠΈΠ»ΠΈ Π±ΠΎΠ»Π΅Π΅ Π΄Π»ΠΈΡΠ΅Π»ΡΠ½ΡΡ Π³Π°ΡΠ°Π½ΡΠΈΡ.ΠΠΎΡΠΊΠΎΠ»ΡΠΊΡ Π»Π°ΠΌΠΈΠ½Π°Ρ ΠΈΠΌΠ΅Π΅Ρ Π³Π»Π°Π΄ΠΊΡΡ ΠΏΠΎΠ²Π΅ΡΡ Π½ΠΎΡΡΡ, Π½Π΅ Π·Π°Π±ΡΠ΄ΡΡΠ΅ Π΄ΠΎΠ±Π°Π²ΠΈΡΡ ΠΊΠΎΠ²ΡΠΈΠΊΠΈ Π΄Π»Ρ Π²Π°Π½Π½ΠΎΠΉ, ΡΡΠΎΠ±Ρ ΠΈΠ·Π±Π΅ΠΆΠ°ΡΡ Π½Π΅ΠΎΠΆΠΈΠ΄Π°Π½Π½ΡΡ ΡΠΊΠΎΠ»ΡΠΆΠ΅Π½ΠΈΠΉ ΠΈ ΠΏΠ°Π΄Π΅Π½ΠΈΠΉ.
ΠΠ°ΠΌΠΈΠ½ΠΈΡΠΎΠ²Π°Π½Π½ΡΠ΅ ΠΏΠΎΠ»Ρ Π½Π° ΡΡΠ΅Π½Π°Ρ
ΠΠΎΠ·ΠΌΠΎΠΆΠ½ΠΎ, Π²Ρ ΡΠ΄ΠΈΠ²ΠΈΡΠ΅ΡΡ, ΡΠ·Π½Π°Π², ΡΡΠΎ Π»Π°ΠΌΠΈΠ½Π°Ρ ΠΌΠΎΠΆΠ½ΠΎ ΡΠΊΠ»Π°Π΄ΡΠ²Π°ΡΡ ΠΈ Π½Π° ΡΡΠ΅Π½Ρ. ΠΠ½Π΅ΡΠ½ΠΈΠΉ Π²ΠΈΠ΄ Π²Π½Π°Ρ
Π»Π΅ΡΡ ΡΡΠ΅Π·Π²ΡΡΠ°ΠΉΠ½ΠΎ ΠΏΠΎΠΏΡΠ»ΡΡΠ΅Π½, ΠΈ Π²Ρ ΠΌΠΎΠΆΠ΅ΡΠ΅ Π²ΠΎΡΡΠΎΠ·Π΄Π°ΡΡ ΡΡΡ ΡΡΡΠ΅ΡΠΈΠΊΡ, ΡΡΡΠ°Π½ΠΎΠ²ΠΈΠ² Π»Π°ΠΌΠΈΠ½Π°Ρ Π²ΠΌΠ΅ΡΡΠΎ Π΄Π΅ΡΠ΅Π²Π° Π·Π° Π½Π΅Π±ΠΎΠ»ΡΡΡΡ ΡΠ΅Π½Ρ. ΠΡΠ±ΠΈΡΠ°ΠΉΡΠ΅ Π»Π°ΠΌΠΈΠ½Π°Ρ Ρ Π°ΡΡΠ΅Π½ΡΠΈΡΠ½ΡΠΌ ΡΠΈΡΡΠ½ΠΊΠΎΠΌ ΠΈΠ»ΠΈ ΠΏΡΠΈΠ½ΡΠΎΠΌ, ΠΈΠΌΠΈΡΠΈΡΡΡΡΠΈΠΌ Π΄Π΅ΡΠ΅Π²ΠΎ.
ΠΡ ΠΌΠΎΠΆΠ΅ΡΠ΅ Π΄ΠΎΠ±Π°Π²ΠΈΡΡ Π»Π°ΠΌΠΈΠ½Π°Ρ ΠΊ ΡΠ²ΠΎΠΈΠΌ ΡΡΠ΅Π½Π°ΠΌ Ρ ΠΏΠΎΠΌΠΎΡΡΡ Π³Π΅ΡΠΌΠ΅ΡΠΈΠΊΠ° ΠΈ ΠΏΠΈΡΡΠΎΠ»Π΅ΡΠ° Π΄Π»Ρ Π³Π²ΠΎΠ·Π΄Π΅ΠΉ, ΡΡΠΎΠ±Ρ ΠΏΠΎΠ»ΡΡΠΈΡΡ ΡΠ°Π½ΡΠ°ΡΡΠΈΡΠ΅ΡΠΊΡΡ ΠΎΡΠΎΠ±Π΅Π½Π½ΠΎΡΡΡ ΡΡΠ΅Π½Ρ.ΠΠ·ΠΌΠ΅ΡΡΡΠ΅ ΠΈ ΠΎΠ±ΡΠ΅ΠΆΡΡΠ΅ Π»Π°ΠΌΠΈΠ½Π°ΡΠ½ΡΠ΅ Π΄ΠΎΡΠΊΠΈ Π΄ΠΎ Π½ΡΠΆΠ½ΠΎΠΉ ΡΠΈΡΠΈΠ½Ρ, ΠΏΡΠ΅ΠΆΠ΄Π΅ ΡΠ΅ΠΌ ΠΏΡΠΈΠΊΡΠ΅ΠΏΠ»ΡΡΡ ΠΈΡ
ΠΊ ΡΡΠ΅Π½Π°ΠΌ Π΄Π»Ρ ΠΈΠ΄Π΅Π°Π»ΡΠ½ΠΎΠΉ ΠΏΠΎΠ΄Π³ΠΎΠ½ΠΊΠΈ. Π£Π±Π΅Π΄ΠΈΡΠ΅ΡΡ, ΡΡΠΎ Π²Ρ ΠΎΡΡΠ°Π²Π»ΡΠ΅ΡΠ΅ Π½Π΅Π±ΠΎΠ»ΡΡΠΎΠΉ Π·Π°Π·ΠΎΡ ΠΌΠ΅ΠΆΠ΄Ρ Π΄Π΅ΡΠ°Π»ΡΠΌΠΈ, ΡΡΠΎΠ±Ρ ΠΌΠ°ΡΠ΅ΡΠΈΠ°Π» ΠΌΠΎΠ³ ΡΠ°ΡΡΠΈΡΡΡΡΡΡ ΠΈ ΡΠΆΠΈΠΌΠ°ΡΡΡΡ, Π½Π΅ Π²ΡΠ·ΡΠ²Π°Ρ Π΅Π³ΠΎ Π΄Π΅ΡΠΎΡΠΌΠ°ΡΠΈΠΈ ΠΈΠ»ΠΈ ΠΎΡΠ»Π°Π±Π»Π΅Π½ΠΈΡ.
ΠΠ°ΠΌΠΈΠ½Π°Ρ Mohawk
Π‘ΡΡΠ΅ΡΡΠ²ΡΠ΅Ρ ΠΌΠ½ΠΎΠΆΠ΅ΡΡΠ²ΠΎ Π±ΡΠ΅Π½Π΄ΠΎΠ², ΠΏΡΠΎΠΈΠ·Π²ΠΎΠ΄ΡΡΠΈΡ
Π»Π°ΠΌΠΈΠ½Π°Ρ, Π½ΠΎ Mohawk ΡΠ²Π»ΡΠ΅ΡΡΡ ΠΎΠ΄Π½ΠΈΠΌ ΠΈΠ· Π»ΠΈΠ΄Π΅ΡΠΎΠ² ΠΎΡΡΠ°ΡΠ»ΠΈ. ΠΠ° ΡΠ°ΠΌΠΎΠΌ Π΄Π΅Π»Π΅, Mohawk ΠΏΡΠΎΠΈΠ·Π²ΠΎΠ΄ΠΈΡ ΠΎΠ΄ΠΈΠ½ ΠΈΠ· ΡΠ°ΠΌΡΡ
Π±ΠΎΠ»ΡΡΠΈΡ
Π°ΡΡΠΎΡΡΠΈΠΌΠ΅Π½ΡΠΎΠ² Π»Π°ΠΌΠΈΠ½ΠΈΡΠΎΠ²Π°Π½Π½ΡΡ
Π½Π°ΠΏΠΎΠ»ΡΠ½ΡΡ
ΠΏΠΎΠΊΡΡΡΠΈΠΉ Π΄Π»Ρ Π»ΡΠ±ΠΎΠ³ΠΎ ΡΡΠΈΠ»Ρ ΠΈ Π»ΡΠ±ΠΎΠ³ΠΎ Π±ΡΠ΄ΠΆΠ΅ΡΠ°.ΠΡΠΎ Π½Π°ΠΏΠΎΠ»ΡΠ½ΠΎΠ΅ ΠΏΠΎΠΊΡΡΡΠΈΠ΅ ΠΏΡΠ΅Π΄ΡΡΠ°Π²Π»Π΅Π½ΠΎ Π±ΠΎΠ»Π΅Π΅ ΡΠ΅ΠΌ 100 ΡΠ°Π·Π»ΠΈΡΠ½ΡΠΌΠΈ ΠΏΡΠΎΠ΄ΡΠΊΡΠ°ΠΌΠΈ, ΠΊΠΎΡΠΎΡΡΠ΅ ΡΠ³ΡΡΠΏΠΏΠΈΡΠΎΠ²Π°Π½Ρ Π² ΡΡΠΈ ΡΠ°Π·Π½ΡΠ΅ ΠΊΠΎΠ»Π»Π΅ΠΊΡΠΈΠΈ. ΠΠ·ΡΡΠΈΡΠ΅ ΡΠ°Π·Π½ΠΎΠΎΠ±ΡΠ°Π·ΠΈΠ΅ ΡΠ²Π΅ΡΠΎΠ² ΠΈ ΡΡΠΈΠ»Π΅ΠΉ ΠΎΡ Mohawk, ΡΡΠΎΠ±Ρ ΠΏΠΎΠΌΠΎΡΡ Π²Π°ΠΌ Π½Π°ΠΉΡΠΈ ΠΈΠ΄Π΅Π°Π»ΡΠ½ΡΠΉ Π΄ΠΈΠ·Π°ΠΉΠ½ Π΄Π»Ρ Π²Π°ΡΠ΅Π³ΠΎ ΠΏΡΠΎΡΡΡΠ°Π½ΡΡΠ²Π°. ΠΡΠΎΡ ΠΏΠΎΠ» ΡΡΠ΅Π·Π²ΡΡΠ°ΠΉΠ½ΠΎ ΠΏΡΠΎΡΠ½ΡΠΉ ΠΈ Π²ΠΎΠ΄ΠΎΡΡΠΎΠΉΠΊΠΈΠΉ, ΡΡΠΎ Π΄Π΅Π»Π°Π΅Ρ Π΅Π³ΠΎ Π»ΡΡΡΠΈΠΌ Π²ΡΠ±ΠΎΡΠΎΠΌ Π΄Π»Ρ ΠΌΠ½ΠΎΠ³ΠΈΡ
Π΄ΠΎΠΌΠΎΠ²Π»Π°Π΄Π΅Π»ΡΡΠ΅Π².
ΠΡΠΈ ΠΏΡΠ°Π²ΠΈΠ»ΡΠ½ΠΎΠΉ ΡΠΊΠ»Π°Π΄ΠΊΠ΅ Π»Π°ΠΌΠΈΠ½Π°Ρ Mohawk ΠΏΡΠΎΡΠ»ΡΠΆΠΈΡ ΠΎΡ 10 Π΄ΠΎ 15 Π»Π΅Ρ. ΠΡΠ΅Π½Π΄ ΡΠ°ΠΊΠΆΠ΅ ΠΏΡΠ΅Π΄Π»Π°Π³Π°Π΅Ρ ΠΏΠΎΠΆΠΈΠ·Π½Π΅Π½Π½ΡΡ ΠΎΠ³ΡΠ°Π½ΠΈΡΠ΅Π½Π½ΡΡ Π³Π°ΡΠ°Π½ΡΠΈΡ Π½Π° ΡΠ²ΠΎΡ ΠΏΡΠΎΠ΄ΡΠΊΡΠΈΡ.
ΠΠ°ΠΊ ΠΈ Π² ΡΠ»ΡΡΠ°Π΅ Π»ΡΠ±ΠΎΠ³ΠΎ Π΄ΠΎΠΌΠ°ΡΠ½Π΅Π³ΠΎ ΠΏΡΠΎΠ΅ΠΊΡΠ° ΠΈΠ»ΠΈ ΠΎΡΠ΄Π΅Π»ΠΊΠΈ, ΡΠΊΠ»Π°Π΄ΠΊΠ° Π»Π°ΠΌΠΈΠ½Π°ΡΠ° Π² Π²Π°ΡΠ΅ΠΌ Π΄ΠΎΠΌΠ΅ ΠΈΠΌΠ΅Π΅Ρ ΡΡΠ΄ ΠΏΡΠ΅ΠΈΠΌΡΡΠ΅ΡΡΠ² ΠΈ Π½Π΅Π΄ΠΎΡΡΠ°ΡΠΊΠΎΠ².ΠΠ°Π²Π°ΠΉΡΠ΅ ΠΏΠΎΠ΄ΡΠΎΠ±Π½Π΅Π΅ ΡΠ°ΡΡΠΌΠΎΡΡΠΈΠΌ Π½Π΅ΠΊΠΎΡΠΎΡΡΠ΅ ΠΏΠ»ΡΡΡ ΠΈ ΠΌΠΈΠ½ΡΡΡ, ΡΡΠΎΠ±Ρ Π΄Π°ΡΡ Π²Π°ΠΌ Π±ΠΎΠ»Π΅Π΅ ΡΠ΅ΡΠΊΠΎΠ΅ ΠΏΡΠ΅Π΄ΡΡΠ°Π²Π»Π΅Π½ΠΈΠ΅ ΠΎ ΡΠΎΠΌ, ΠΏΠΎΠ΄Ρ ΠΎΠ΄ΠΈΡ Π»ΠΈ Π²Π°ΠΌ Π»Π°ΠΌΠΈΠ½Π°Ρ.
ΠΠ»ΡΡΡ
- ΠΠ°ΠΌΠΈΠ½Π°Ρ ΠΏΠΎΡΡΠ°Π²Π»ΡΠ΅ΡΡΡ Π² Π²ΠΈΠ΄Π΅ Π΄ΠΎΡΠΎΠΊ ΠΈΠ»ΠΈ ΠΏΠ»ΠΈΡΠΎΠΊ, ΡΡΠΎ ΠΏΠΎΠ·Π²ΠΎΠ»ΡΠ΅Ρ Π»Π΅Π³ΠΊΠΎ Π²ΠΎΡΡΠΎΠ·Π΄Π°ΡΡ ΠΆΠ΅Π»Π°Π΅ΠΌΡΠΉ Π²ΠΈΠ΄.
- ΠΠΎΠ» ΠΈΠ· Π»Π°ΠΌΠΈΠ½Π°ΡΠ° Π»Π΅Π³ΠΊΠΎ ΡΠΊΠ»Π°Π΄ΡΠ²Π°Π΅ΡΡΡ Π±Π»Π°Π³ΠΎΠ΄Π°ΡΡ ΡΠΎΠΌΡ, ΡΡΠΎ Π΅Π³ΠΎ ΠΊΡΠ°Ρ ΠΈ ΠΊΠΎΠ½ΡΡ Π·Π°ΡΠ΅Π»ΠΊΠΈΠ²Π°ΡΡΡΡ. ΠΠ²ΠΎΠ·Π΄ΠΈ Π½Π΅ ΡΡΠ΅Π±ΡΡΡΡΡ, ΡΡΠΎ ΠΎΠ·Π½Π°ΡΠ°Π΅Ρ, ΡΡΠΎ Π²Ρ ΠΌΠΎΠΆΠ΅ΡΠ΅ ΡΠ°ΠΌΠΎΡΡΠΎΡΡΠ΅Π»ΡΠ½ΠΎ ΡΠΊΠ»Π°Π΄ΡΠ²Π°ΡΡ Π»Π°ΠΌΠΈΠ½Π°Ρ Π² ΠΊΠ°ΡΠ΅ΡΡΠ²Π΅ ΠΏΡΠΎΡΡΠΎΠΉ ΠΌΠΎΠ΄Π΅ΡΠ½ΠΈΠ·Π°ΡΠΈΠΈ ΡΠ²ΠΎΠΈΠΌΠΈ ΡΡΠΊΠ°ΠΌΠΈ.
- Π’ΠΎΠ½ΠΊΠ°Ρ ΠΏΠΎΠ΄ΠΊΠ»Π°Π΄ΠΊΠ° ΠΈΠ· ΠΏΠ΅Π½ΠΎΠΌΠ°ΡΠ΅ΡΠΈΠ°Π»Π° Π΄Π΅Π»Π°Π΅Ρ Π»Π°ΠΌΠΈΠ½Π°Ρ Π±Π΅ΡΡΡΠΌΠ½ΡΠΌ ΠΈ ΡΠ΄ΠΎΠ±Π½ΡΠΌ Π΄Π»Ρ Ρ ΠΎΠ΄ΡΠ±Ρ.
- ΠΠ»Ρ ΠΏΡΠΎΠΈΠ·Π²ΠΎΠ΄ΡΡΠ²Π° Π»Π°ΠΌΠΈΠ½Π°ΡΠ° Π½Π΅ ΠΈΡΠΏΠΎΠ»ΡΠ·ΡΡΡΡΡ Π΄Π΅ΡΠ΅Π²ΡΡ, ΡΡΠΎ ΠΎΠ·Π½Π°ΡΠ°Π΅Ρ, ΡΡΠΎ ΡΡΠΎ Ρ
ΠΎΡΠΎΡΠΈΠΉ Π²Π°ΡΠΈΠ°Π½Ρ, Π΅ΡΠ»ΠΈ Π²Π°Ρ Π±Π΅ΡΠΏΠΎΠΊΠΎΡΡ ΡΠ°ΠΊΠΈΠ΅ Π²ΠΎΠΏΡΠΎΡΡ, ΠΊΠ°ΠΊ Π²ΡΡΡΠ±ΠΊΠ° Π»Π΅ΡΠΎΠ² ΠΈ ΡΠΊΠΎΠ»ΠΎΠ³ΠΈΡΠ½ΠΎΡΡΡ.

- ΠΠΠ‘ (Π»Π΅ΡΡΡΠΈΠ΅ ΠΎΡΠ³Π°Π½ΠΈΡΠ΅ΡΠΊΠΈΠ΅ ΡΠΎΠ΅Π΄ΠΈΠ½Π΅Π½ΠΈΡ) Π½Π΅ Π²ΡΠ΄Π΅Π»ΡΡΡΡΡ ΠΈΠ· Π»Π°ΠΌΠΈΠ½Π°ΡΠ°, ΠΏΠΎΡΠΊΠΎΠ»ΡΠΊΡ Π½Π΅Ρ Π½Π΅ΠΎΠ±Ρ ΠΎΠ΄ΠΈΠΌΠΎΡΡΠΈ ΠΈΡΠΏΠΎΠ»ΡΠ·ΠΎΠ²Π°ΡΡ ΠΊΠ»Π΅ΠΉ ΠΈΠ»ΠΈ Π΄ΡΡΠ³ΠΈΠ΅ ΠΊΠ»Π΅ΡΡΠΈΠ΅ Π²Π΅ΡΠ΅ΡΡΠ²Π°.
- ΠΠ°ΠΌΠΈΠ½Π°Ρ ΠΈΡΠΊΠ»ΡΡΠΈΡΠ΅Π»ΡΠ½ΠΎ ΠΏΡΠΎΡΠ½ΡΠΉ, ΡΡΠΎ Π΄Π΅Π»Π°Π΅Ρ Π΅Π³ΠΎ Π»ΡΡΡΠΈΠΌ Π²ΡΠ±ΠΎΡΠΎΠΌ Π΄Π»Ρ Π·Π°Π½ΡΡΡΡ Π΄ΠΎΠΌΠΎΡ ΠΎΠ·ΡΠΉΡΡΠ². Π’Π°ΠΊΠΆΠ΅ ΠΎΡΠ΅Π½Ρ Π»Π΅Π³ΠΊΠΎ ΠΏΠΎΠ΄Π΄Π΅ΡΠΆΠΈΠ²Π°ΡΡ ΡΠΈΡΡΠΎΡΡ Ρ ΠΏΠΎΠΌΠΎΡΡΡ ΡΠ΅Π³ΡΠ»ΡΡΠ½ΠΎΠ³ΠΎ ΠΏΠΎΠ΄ΠΌΠ΅ΡΠ°Π½ΠΈΡ ΠΈ ΠΏΠ΅ΡΠΈΠΎΠ΄ΠΈΡΠ΅ΡΠΊΠΎΠ³ΠΎ ΠΌΡΡΡΡ ΠΏΠΎΠ»ΠΎΠ².
ΠΠΈΠ½ΡΡΡ
- Π₯ΠΎΡΡ Π»Π°ΠΌΠΈΠ½Π°Ρ Π΄ΠΎΡΡΡΠΏΠ΅Π½ ΠΏΠΎ ΡΠ΅Π½Π΅, ΠΎΠ½ ΠΎΠ±ΡΡΠ½ΠΎ Π½Π΅ Π»ΡΡΡΠΈΠΉ Π²ΡΠ±ΠΎΡ Π΄Π»Ρ ΠΏΠΎΠΊΡΠΏΠ°ΡΠ΅Π»Π΅ΠΉ ΠΆΠΈΠ»ΡΡ, ΠΊΠΎΡΠΎΡΡΠ΅ ΠΎΠ±ΡΡΠ½ΠΎ ΠΏΡΠ΅Π΄ΠΏΠΎΡΠΈΡΠ°ΡΡ ΡΠ²Π΅ΡΠ΄ΡΡ Π΄ΡΠ΅Π²Π΅ΡΠΈΠ½Ρ ΠΈΠ»ΠΈ ΠΏΠ»ΠΈΡΠΊΡ.
- ΠΠ°ΠΌΠΈΠ½Π°Ρ ΡΡΠ·Π²ΠΈΠΌ ΠΊ ΠΏΠΎΠ²ΡΠ΅ΠΆΠ΄Π΅Π½ΠΈΡ Π²Π»Π°Π³ΠΎΠΉ, ΠΏΠΎΡΡΠΎΠΌΡ Π΅Π³ΠΎ Π½Π΅ ΡΠ»Π΅Π΄ΡΠ΅Ρ ΡΠΊΠ»Π°Π΄ΡΠ²Π°ΡΡ Π² ΠΏΠΎΠ΄Π²Π°Π»Π°Ρ ΠΈΠ»ΠΈ ΠΌΠ΅ΡΡΠ°Ρ Ρ ΠΏΠΎΠ²ΡΡΠ΅Π½Π½ΠΎΠΉ Π²Π»Π°ΠΆΠ½ΠΎΡΡΡΡ.
- ΠΡΠ»ΠΈ Π²Ρ Ρ ΠΎΡΠΈΡΠ΅ ΡΠ»ΠΎΠΆΠΈΡΡ Π»Π°ΠΌΠΈΠ½Π°Ρ Π² Π²Π°Π½Π½ΠΎΠΉ ΠΊΠΎΠΌΠ½Π°ΡΠ΅, Π²ΡΠ΅ ΠΊΡΠ°Ρ Π΄ΠΎΠ»ΠΆΠ½Ρ Π±ΡΡΡ ΠΏΡΠΎΠΊΠ»Π΅Π΅Π½Ρ, Π° ΠΏΠ΅ΡΠΈΠΌΠ΅ΡΡ ΠΏΡΠΈ ΡΠΊΠ»Π°Π΄ΠΊΠ΅ Π·Π°ΠΌΠ°Π·Π°Π½ Π³Π΅ΡΠΌΠ΅ΡΠΈΠΊΠΎΠΌ.
- ΠΡΠ»ΠΈ Π²Ρ Π·Π°Π±ΠΎΡΠΈΡΠ΅ΡΡ ΠΎΠ± ΠΎΠΊΡΡΠΆΠ°ΡΡΠ΅ΠΉ ΡΡΠ΅Π΄Π΅, Π·Π°ΡΠΈΡΠ½ΡΠΉ ΠΈΠ·Π½ΠΎΡΠΎΡΡΠΎΠΉΠΊΠΈΠΉ ΡΠ»ΠΎΠΉ Π½Π° Π»Π°ΠΌΠΈΠ½Π°ΡΠ΅ Π½Π΅ ΠΏΠΎΠ΄Π΄Π°Π΅ΡΡΡ Π±ΠΈΠΎΠ»ΠΎΠ³ΠΈΡΠ΅ΡΠΊΠΎΠΌΡ ΡΠ°Π·Π»ΠΎΠΆΠ΅Π½ΠΈΡ.
ΠΠ°ΠΆΠ½ΠΎ Π²ΡΠ±ΡΠ°ΡΡ Π»ΡΡΡΠΈΠΉ Π»Π°ΠΌΠΈΠ½Π°Ρ Π΄Π»Ρ ΡΠ²ΠΎΠ΅Π³ΠΎ Π΄ΠΎΠΌΠ°, ΡΡΠΎΠ±Ρ Π²Ρ Π±ΡΠ»ΠΈ Π΄ΠΎΠ²ΠΎΠ»ΡΠ½Ρ ΡΠ΅Π·ΡΠ»ΡΡΠ°ΡΠΎΠΌ.
ΠΡΠ΄Ρ ΡΠΎ ΡΠ²Π΅Ρ, ΡΠΎΠ»ΡΠΈΠ½Π° ΠΈΠ»ΠΈ ΡΡΠΈΠ»Ρ, ΠΌΠ½ΠΎΠ³ΠΈΠ΅ Π±ΡΠ΅Π½Π΄Ρ ΠΏΡΠ΅Π΄Π»Π°Π³Π°ΡΡ Π²ΡΡΠΎΠΊΠΎΠΊΠ°ΡΠ΅ΡΡΠ²Π΅Π½Π½ΡΠ΅ ΠΈ ΠΏΡΠΎΡΠ½ΡΠ΅ Π½Π°ΠΏΠΎΠ»ΡΠ½ΡΠ΅ ΠΏΠΎΠΊΡΡΡΠΈΡ, ΠΊΠΎΡΠΎΡΡΠ΅ ΠΏΡΠΎΡΠ»ΡΠΆΠ°Ρ Π΄ΠΎΠ»Π³ΠΈΠ΅ Π³ΠΎΠ΄Ρ. ΠΠΎΡ Π½Π΅ΠΊΠΎΡΠΎΡΡΠ΅ ΠΊΠ»ΡΡΠ΅Π²ΡΠ΅ Ρ
Π°ΡΠ°ΠΊΡΠ΅ΡΠΈΡΡΠΈΠΊΠΈ, Π½Π° ΠΊΠΎΡΠΎΡΡΠ΅ ΡΠ»Π΅Π΄ΡΠ΅Ρ ΠΎΠ±ΡΠ°ΡΠ°ΡΡ Π²Π½ΠΈΠΌΠ°Π½ΠΈΠ΅ ΠΏΡΠΈ Π²ΡΠ±ΠΎΡΠ΅ Π½Π°ΠΈΠ»ΡΡΡΠ΅Π³ΠΎ Π»Π°ΠΌΠΈΠ½Π°ΡΠ° Π΄Π»Ρ ΡΠ²ΠΎΠ΅Π³ΠΎ ΠΆΠΈΠ»ΡΡ:
- Π£ΡΡΠ°Π½ΠΎΠ²ΠΊΠ°: ΠΡΠΈΡΠ΅ Π»Π°ΠΌΠΈΠ½Π°Ρ Ρ ΡΠΈΡΡΠ΅ΠΌΠΎΠΉ Π±Π»ΠΎΠΊΠΈΡΠΎΠ²ΠΊΠΈ, ΠΊΠΎΡΠΎΡΠ°Ρ ΠΏΡΠ΅Π΄ΠΎΡΠ²ΡΠ°ΡΠ°Π΅Ρ ΠΏΡΠΎΠ½ΠΈΠΊΠ½ΠΎΠ²Π΅Π½ΠΈΠ΅ Π²Π»Π°Π³ΠΈ Π² Π΄ΠΎΡΠΊΠΈ. Π‘ΠΎΠ΅Π΄ΠΈΠ½ΡΡΡΠΈΠ΅ΡΡ ΠΊΡΠ°Ρ ΡΠ°ΠΊΠΆΠ΅ Π΄Π΅Π»Π°ΡΡ ΡΡΡΠ°Π½ΠΎΠ²ΠΊΡ ΠΏΡΠΎΡΡΠΎΠΉ ΠΈ Π±Π΅ΡΡΠΎΠ²Π½ΠΎΠΉ.
- ΠΠ΅ΡΠΌΠ΅ΡΠΈΠΊ: ΠΡΡΡΠΈΠΉ Π»Π°ΠΌΠΈΠ½Π°Ρ Π²ΠΊΠ»ΡΡΠ°Π΅Ρ Π² ΡΠ΅Π±Ρ ΠΎΡΠ΅Π½Ρ ΠΏΡΠΎΡΠ½ΡΠΉ ΠΈ Π²ΠΎΠ΄ΠΎΡΡΠΎΠΉΠΊΠΈΠΉ Π³Π΅ΡΠΌΠ΅ΡΠΈΠΊ, ΠΊΠΎΡΠΎΡΡΠΉ Π½Π°Π½ΠΎΡΠΈΡΡΡ Π½Π° Π²Π΅ΡΡ Π½ΠΈΠΉ ΡΠ»ΠΎΠΉ Π΄Π»Ρ Π΄ΠΎΠΏΠΎΠ»Π½ΠΈΡΠ΅Π»ΡΠ½ΠΎΠΉ Π·Π°ΡΠΈΡΡ.
- ΠΠΎΠ»Π³ΠΎΠ²Π΅ΡΠ½ΠΎΡΡΡ: ΠΠΎΠ»ΡΡΠΈΠ½ΡΡΠ²ΠΎ Π»Π°ΠΌΠΈΠ½Π°ΡΠ½ΡΡ ΠΏΠΎΠ»ΠΎΠ² Π΄ΠΎΠ»Π³ΠΎΠ²Π΅ΡΠ½Ρ, Π½ΠΎ ΡΡΠ°ΡΠ°ΠΉΡΠ΅ΡΡ Π²ΡΠ±ΠΈΡΠ°ΡΡ ΠΈΡ Ρ ΡΠ΅ΠΉΡΠΈΠ½Π³ΠΎΠΌ AC4, ΡΡΠΎ ΠΎΠ·Π½Π°ΡΠ°Π΅Ρ, ΡΡΠΎ Π²Π°ΡΠΈ ΠΏΠΎΠ»Ρ ΠΌΠΎΠ³ΡΡ Π²ΡΠ΄Π΅ΡΠΆΠΈΠ²Π°ΡΡ ΠΈΠ½ΡΠ΅Π½ΡΠΈΠ²Π½ΠΎΠ΅ ΠΏΠ΅ΡΠ΅Ρ ΠΎΠ΄Π½ΠΎΠ΅ Π΄Π²ΠΈΠΆΠ΅Π½ΠΈΠ΅ ΠΈ Π±ΠΎΠ»ΡΡΠΎΠΉ ΠΈΠ·Π½ΠΎΡ Π±Π΅Π· ΠΏΠΎΡΠ²Π»Π΅Π½ΠΈΡ ΡΠ°ΡΠ°ΠΏΠΈΠ½ ΠΈΠ»ΠΈ Π΄ΡΡΠ³ΠΈΡ ΠΏΠΎΠ²ΡΠ΅ΠΆΠ΄Π΅Π½ΠΈΠΉ.
- ΠΠΎΠ΄ΠΎΠ½Π΅ΠΏΡΠΎΠ½ΠΈΡΠ°Π΅ΠΌΠΎΡΡΡ: ΠΠ°ΡΠ΅ΡΡΠ²Π΅Π½Π½ΡΠΉ Π»Π°ΠΌΠΈΠ½ΠΈΡΠΎΠ²Π°Π½Π½ΡΠΉ ΠΏΠΎΠ» ΡΡΡΠΎΠΉΡΠΈΠ² ΠΊ ΡΠ°Π·Π»ΠΈΠ²Π°ΠΌ ΠΈ ΠΏΡΡΠ½Π°ΠΌ, ΠΈ Π΅Π³ΠΎ ΠΌΠΎΠΆΠ½ΠΎ ΠΈΡΠΏΠΎΠ»ΡΠ·ΠΎΠ²Π°ΡΡ Π² ΡΠ°ΠΊΠΈΡ
ΠΌΠ΅ΡΡΠ°Ρ
, ΠΊΠ°ΠΊ Π²Π°Π½Π½Π°Ρ ΠΊΠΎΠΌΠ½Π°ΡΠ° ΠΈΠ»ΠΈ ΠΊΡΡ
Π½Ρ, Π½Π΅ Π±Π΅ΡΠΏΠΎΠΊΠΎΡΡΡ ΠΎ ΠΏΠΎΠ²ΡΠ΅ΠΆΠ΄Π΅Π½ΠΈΠΈ Π²ΠΎΠ΄ΠΎΠΉ.

- ΠΡΡΠΎΡΡΠΈΠΌΠ΅Π½Ρ: ΠΠ°ΡΠ΅ΡΡΠ²Π΅Π½Π½ΡΠ΅ ΠΌΠ°ΡΠΊΠΈ Π»Π°ΠΌΠΈΠ½Π°ΡΠ° ΠΏΡΠ΅Π΄Π»Π°Π³Π°ΡΡ ΠΏΠΎΡΡΠ΅Π±ΠΈΡΠ΅Π»ΡΠΌ ΡΠ°Π·Π»ΠΈΡΠ½ΡΠ΅ ΡΡΠΈΠ»ΠΈ, ΡΠ²Π΅ΡΠ° ΠΈ Π΄ΠΈΠ·Π°ΠΉΠ½Ρ.Π£Π±Π΅Π΄ΠΈΡΠ΅ΡΡ, ΡΡΠΎ Π²Ρ Π²ΡΠ±ΡΠ°Π»ΠΈ Π»Π°ΠΌΠΈΠ½Π°Ρ ΡΠΎΠ³ΠΎ ΠΎΡΡΠ΅Π½ΠΊΠ° ΠΈΠ»ΠΈ Π΄ΠΈΠ·Π°ΠΉΠ½Π°, ΠΊΠΎΡΠΎΡΡΠΉ Π²Π°ΠΌ Π½ΡΠ°Π²ΠΈΡΡΡ.
- ΠΡΠ΄Π΅Π»ΠΊΠ°: ΠΡΠ±ΠΈΡΠ΅ Π»ΠΈ Π²Ρ Π³Π»ΡΠ½ΡΠ΅Π²ΡΠΉ ΠΈΠ»ΠΈ ΠΏΡΠΈΠ³Π»ΡΡΠ΅Π½Π½ΡΠΉ ΠΌΠ°ΡΠΎΠ²ΡΠΉ Π²ΠΈΠ΄, Π²ΡΡΠΎΠΊΠΎΠΊΠ°ΡΠ΅ΡΡΠ²Π΅Π½Π½ΡΠΉ Π»Π°ΠΌΠΈΠ½Π°Ρ Π΄ΠΎΠ»ΠΆΠ΅Π½ ΠΈΠΌΠ΅ΡΡ Π²ΡΠ±ΡΠ°Π½Π½ΡΡ Π²Π°ΠΌΠΈ ΠΎΡΠ΄Π΅Π»ΠΊΡ Ρ ΠΈΠ΄Π΅Π°Π»ΡΠ½ΡΠΌ Π±Π»Π΅ΡΠΊΠΎΠΌ.
- ΠΠ°ΡΠ°Π½ΡΠΈΡ: ΠΠ°ΠΆΠ΄ΡΠΉ ΠΏΡΠΎΠΈΠ·Π²ΠΎΠ΄ΠΈΡΠ΅Π»Ρ Π»Π°ΠΌΠΈΠ½Π°ΡΠ° ΠΏΡΠ΅Π΄Π»Π°Π³Π°Π΅Ρ ΡΠ²ΠΎΠΈ ΡΡΠ»ΠΎΠ²ΠΈΡ Π³Π°ΡΠ°Π½ΡΠΈΠΈ. ΠΡΠ±Π΅ΡΠΈΡΠ΅ Π±ΡΠ΅Π½Π΄, ΠΊΠΎΡΠΎΡΡΠΉ ΠΏΡΠ΅Π΄Π»Π°Π³Π°Π΅Ρ Π²Π°ΠΌ Π΄ΠΎΠ»Π³ΠΎΡΡΠΎΡΠ½ΡΡ Π³Π°ΡΠ°Π½ΡΠΈΡ Π½Π΅ ΠΌΠ΅Π½Π΅Π΅ 10 Π»Π΅Ρ ΠΈΠ»ΠΈ Π΄Π°ΠΆΠ΅ ΠΏΠΎΠΆΠΈΠ·Π½Π΅Π½Π½ΡΡ ΠΎΠ³ΡΠ°Π½ΠΈΡΠ΅Π½Π½ΡΡ Π³Π°ΡΠ°Π½ΡΠΈΡ Π΄Π»Ρ ΠΌΠ°ΠΊΡΠΈΠΌΠ°Π»ΡΠ½ΠΎΠΉ Π·Π°ΡΠΈΡΡ.
Π’Π΅ΠΏΠ΅ΡΡ, ΠΊΠΎΠ³Π΄Π° Π²Ρ Π·Π½Π°Π΅ΡΠ΅ Π±ΠΎΠ»ΡΡΠ΅ ΠΎ Π»Π°ΠΌΠΈΠ½ΠΈΡΠΎΠ²Π°Π½Π½ΡΡ
ΠΏΠΎΠ»Π°Ρ
, ΠΏΡΠΈΡΠ»ΠΎ Π²ΡΠ΅ΠΌΡ ΠΏΠΎΠ΄ΡΠΌΠ°ΡΡ ΠΎ ΡΡΠΎΠΈΠΌΠΎΡΡΠΈ Π²Π°ΡΠΈΡ
Π½ΠΎΠ²ΡΡ
ΠΏΠΎΠ»ΠΎΠ². Π‘ΠΊΠΎΠ»ΡΠΊΠΎ ΡΡΠΎΠΈΡ Π»Π°ΠΌΠΈΠ½Π°Ρ? Π‘ΡΠ΅Π΄Π½ΡΡ ΡΡΠΎΠΈΠΌΠΎΡΡΡ Π»Π°ΠΌΠΈΠ½Π°ΡΠ° ΡΠΎΡΡΠ°Π²Π»ΡΠ΅Ρ ΠΎΡ 1 Π΄ΠΎ 5 Π΄ΠΎΠ»Π»Π°ΡΠΎΠ² Π·Π° ΠΊΠ²Π°Π΄ΡΠ°ΡΠ½ΡΠΉ ΡΡΡ, ΠΏΡΠΈ ΡΡΠΎΠΌ ΡΡΠ΅Π΄Π½ΡΡ ΡΠ΅Π½Π° ΡΠΎΡΡΠ°Π²Π»ΡΠ΅Ρ 4 Π΄ΠΎΠ»Π»Π°ΡΠ° Π·Π° ΠΊΠ²Π°Π΄ΡΠ°ΡΠ½ΡΠΉ ΡΡΡ.
ΠΠΎΡ
ΠΎΠ΄ΠΈΡΠ΅ ΠΏΠΎ ΠΌΠ°Π³Π°Π·ΠΈΠ½Π°ΠΌ, ΡΡΠΎΠ±Ρ Π½Π°ΠΉΡΠΈ ΠΎΡΠ»ΠΈΡΠ½ΡΠ΅ ΠΏΡΠ΅Π΄Π»ΠΎΠΆΠ΅Π½ΠΈΡ Π½Π° Π»Π°ΠΌΠΈΠ½ΠΈΡΠΎΠ²Π°Π½Π½ΡΠ΅ ΠΏΠΎΠ»Ρ Π² ΠΌΠ΅ΡΡΠ½ΠΎΠΌ ΠΌΠ°Π³Π°Π·ΠΈΠ½Π΅ ΡΠΎΠ²Π°ΡΠΎΠ² Π΄Π»Ρ Π΄ΠΎΠΌΠ°, Π² ΠΠ½ΡΠ΅ΡΠ½Π΅ΡΠ΅ ΠΈΠ»ΠΈ ΠΎΠ±ΡΠ°ΡΠΈΡΠ΅ΡΡ ΠΊ ΠΏΡΠΎΠ΄Π°Π²ΡΡ Π½Π°ΠΏΠΎΠ»ΡΠ½ΡΡ
ΠΏΠΎΠΊΡΡΡΠΈΠΉ, ΡΡΠΎΠ±Ρ Π½Π°ΠΉΡΠΈ Π»ΡΡΡΡΡ ΡΠ΅Π½Ρ.ΠΠ° Π½ΠΈΠ·ΠΊΠΎΠΌ ΡΡΠΎΠ²Π½Π΅ Π»Π°ΠΌΠΈΠ½Π°Ρ, ΠΊΠΎΡΠΎΡΡΠΉ ΡΡΠΎΠΈΡ 1 Π΄ΠΎΠ»Π»Π°Ρ Π·Π° ΠΊΠ²Π°Π΄ΡΠ°ΡΠ½ΡΠΉ ΡΡΡ, ΠΈΠ΄Π΅Π°Π»ΡΠ½ΠΎ ΠΏΠΎΠ΄Ρ
ΠΎΠ΄ΠΈΡ Π΄Π»Ρ ΡΠ΄Π°Π²Π°Π΅ΠΌΠΎΠΉ Π² Π°ΡΠ΅Π½Π΄Ρ Π½Π΅Π΄Π²ΠΈΠΆΠΈΠΌΠΎΡΡΠΈ ΠΈΠ»ΠΈ ΡΡΠ°ΡΡΠΊΠΎΠ² Π΄ΠΎΠΌΠ°, Π³Π΄Π΅ Π½Π΅Ρ ΠΎΡΠΎΠ±ΠΎΠΉ Π°ΠΊΡΠΈΠ²Π½ΠΎΡΡΠΈ. ΠΠ°ΠΌΠΈΠ½Π°Ρ ΡΡΠ΅Π΄Π½Π΅Π³ΠΎ ΠΊΠ°ΡΠ΅ΡΡΠ²Π°, ΠΊΠΎΡΠΎΡΡΠΉ ΡΡΠΎΠΈΡ ΠΎΡ 2 Π΄ΠΎ 4 Π΄ΠΎΠ»Π»Π°ΡΠΎΠ² Π·Π° ΠΊΠ²Π°Π΄ΡΠ°ΡΠ½ΡΠΉ ΡΡΡ, ΠΈΠΌΠ΅Π΅Ρ Π±ΠΎΠ»Π΅Π΅ ΡΠΎΠ»ΡΡΡΠΉ ΡΠ»ΠΎΠΉ ΠΈΠ·Π½ΠΎΡΠ° ΠΈ ΠΌΠΎΠΆΠ΅Ρ Π²ΡΠ΄Π΅ΡΠΆΠΈΠ²Π°ΡΡ ΡΡΠ΅Π΄Π½ΠΈΠΉ ΠΏΠ΅ΡΠ΅Ρ
ΠΎΠ΄Π½ΡΠΉ ΡΡΠ°ΡΠΈΠΊ. ΠΡΠ»ΠΈ Π²Ρ ΠΏΡΠ΅Π΄ΠΏΠΎΡΠΈΡΠ°Π΅ΡΠ΅ Π²ΡΡΠΎΠΊΠΎΠΊΠ°ΡΠ΅ΡΡΠ²Π΅Π½Π½ΡΠΉ Π»Π°ΠΌΠΈΠ½Π°Ρ, ΡΡΠΎΡ Π²Π°ΡΠΈΠ°Π½Ρ ΠΎΠ±ΡΡΠ½ΠΎ ΡΡΠΎΠΈΡ ΠΎΡ 3 Π΄ΠΎ 5 Π΄ΠΎΠ»Π»Π°ΡΠΎΠ² ΠΈΠ»ΠΈ Π±ΠΎΠ»ΡΡΠ΅, Π² Π·Π°Π²ΠΈΡΠΈΠΌΠΎΡΡΠΈ ΠΎΡ Π±ΡΠ΅Π½Π΄Π°. ΠΠ΅ΠΊΠΎΡΠΎΡΡΠ΅ Π²Π°ΡΠΈΠ°Π½ΡΡ Π²ΠΊΠ»ΡΡΠ°ΡΡ ΠΏΡΠΈΠΊΡΠ΅ΠΏΠ»Π΅Π½Π½ΡΡ ΠΏΠΎΠ΄Π»ΠΎΠΆΠΊΡ, Π² ΡΠΎ Π²ΡΠ΅ΠΌΡ ΠΊΠ°ΠΊ Π΄ΡΡΠ³ΠΈΠ΅ ΡΡΠ΅Π±ΡΡΡ, ΡΡΠΎΠ±Ρ Π²Ρ ΡΡΡΠ°Π½ΠΎΠ²ΠΈΠ»ΠΈ Π΅Π΅ ΠΎΡΠ΄Π΅Π»ΡΠ½ΠΎ ΠΏΠ΅ΡΠ΅Π΄ ΡΠΊΠ»Π°Π΄ΠΊΠΎΠΉ ΠΏΠΎΠ»ΠΎΠ².ΠΡΠΎ ΠΏΠΎΠ²Π»ΠΈΡΠ΅Ρ Π½Π° ΠΎΠ±ΡΡΡ ΡΡΠΌΠΌΡ, Π·Π° ΠΊΠΎΡΠΎΡΡΡ Π½ΡΠΆΠ½ΠΎ ΡΠ»ΠΎΠΆΠΈΡΡ Π»Π°ΠΌΠΈΠ½Π°Ρ Π² Π²Π°ΡΠ΅ΠΌ Π΄ΠΎΠΌΠ΅.
Β Π‘ΡΠΎΠΈΠΌΠΎΡΡΡ ΡΠΊΠ»Π°Π΄ΠΊΠΈ Π»Π°ΠΌΠΈΠ½Π°ΡΠ°Β Π±ΡΠ΄Π΅Ρ Π²Π°ΡΡΠΈΡΠΎΠ²Π°ΡΡΡΡ Π² Π·Π°Π²ΠΈΡΠΈΠΌΠΎΡΡΠΈ ΠΎΡ ΠΌΠ½ΠΎΠΆΠ΅ΡΡΠ²Π° ΡΠ°ΠΊΡΠΎΡΠΎΠ². ΠΠΎ-ΠΏΠ΅ΡΠ²ΡΡ
, Π²Π°ΠΌ Π½ΡΠΆΠ½ΠΎ ΡΠ°ΡΡΡΠΈΡΠ°ΡΡ ΠΎΠ±ΡΡΡ ΠΏΠ»ΠΎΡΠ°Π΄Ρ Π²Π°ΡΠ΅Π³ΠΎ Π΄ΠΎΠΌΠ° (ΠΈΠ»ΠΈ ΠΊΠΎΠ½ΠΊΡΠ΅ΡΠ½ΡΡ
ΠΊΠΎΠΌΠ½Π°Ρ), ΡΡΠΎΠ±Ρ ΡΡΠ΅ΡΡΡ ΡΡΠΎΠΈΠΌΠΎΡΡΡ ΠΌΠ°ΡΠ΅ΡΠΈΠ°Π»ΠΎΠ².
Π§Π΅ΠΌ Π±ΠΎΠ»ΡΡΡΡ ΠΏΠ»ΠΎΡΠ°Π΄Ρ Π²Π°ΠΌ Π½ΡΠΆΠ½ΠΎ ΠΏΠΎΠΊΡΡΡΡ, ΡΠ΅ΠΌ Π΄ΠΎΡΠΎΠΆΠ΅ Π±ΡΠ΄ΡΡ Π²Π°ΡΠΈ ΠΌΠ°ΡΠ΅ΡΠΈΠ°Π»Ρ. ΠΡΠ»ΠΈ ΡΡΠ΅Π±ΡΠ΅ΡΡΡ ΠΎΡΠ΄Π΅Π»ΡΠ½Π°Ρ ΠΏΠΎΠ΄Π»ΠΎΠΆΠΊΠ°, ΠΎΠ±ΡΠ·Π°ΡΠ΅Π»ΡΠ½ΠΎ ΡΡΡΠΈΡΠ΅ ΡΡΠΎ. ΠΡΠ»ΠΈ Π²Ρ Π½Π΅ Π·Π°Π½ΠΈΠΌΠ°Π΅ΡΠ΅ΡΡ ΡΡΡΠ°Π½ΠΎΠ²ΠΊΠΎΠΉ ΡΠ²ΠΎΠΈΠΌΠΈ ΡΡΠΊΠ°ΠΌΠΈ, ΠΏΠ»Π°Π½ΠΈΡΡΠΉΡΠ΅ ΠΏΠ»Π°ΡΠΈΡΡ ΠΎΡ 1 Π΄ΠΎ 3 Π΄ΠΎΠ»Π»Π°ΡΠΎΠ² Π·Π° ΠΊΠ²Π°Π΄ΡΠ°ΡΠ½ΡΠΉ ΡΡΡ Π·Π° ΡΠ°Π±ΠΎΡΡ ΠΏΡΠΈ Π½Π°ΠΉΠΌΠ΅ ΠΏΡΠΎΡΠ΅ΡΡΠΈΠΎΠ½Π°Π»Π°.ΠΠ»Ρ ΠΏΠΎΠΌΠ΅ΡΠ΅Π½ΠΈΠΉ Ρ Π±ΠΎΠ»ΡΡΠΈΠΌ ΠΊΠΎΠ»ΠΈΡΠ΅ΡΡΠ²ΠΎΠΌ ΡΠ³Π»ΠΎΠ², Π»Π΅ΡΡΠ½ΠΈΡ ΠΈ Π΄ΡΡΠ³ΠΈΡ
Π½Π΅ΠΎΠ±ΡΡΠ½ΡΡ
ΠΎΡΠΎΠ±Π΅Π½Π½ΠΎΡΡΠ΅ΠΉ ΡΡΠΎΠΈΠΌΠΎΡΡΡ ΡΡΡΠ°Π½ΠΎΠ²ΠΊΠΈ ΠΌΠΎΠΆΠ΅Ρ Π±ΡΡΡ Π²ΡΡΠ΅. ΠΡΠ»ΠΈ Ρ Π²Π°Ρ Π΅ΡΡΡ ΡΡΡΠ΅ΡΡΠ²ΡΡΡΠ΅Π΅ Π½Π°ΠΏΠΎΠ»ΡΠ½ΠΎΠ΅ ΠΏΠΎΠΊΡΡΡΠΈΠ΅, ΠΊΠΎΡΠΎΡΠΎΠ΅ Π½Π΅ΠΎΠ±Ρ
ΠΎΠ΄ΠΈΠΌΠΎ ΡΠ΄Π°Π»ΠΈΡΡ, ΠΌΠ½ΠΎΠ³ΠΈΠ΅ ΠΊΠΎΠΌΠΏΠ°Π½ΠΈΠΈ Π²Π·ΠΈΠΌΠ°ΡΡ ΠΎΡΠ΄Π΅Π»ΡΠ½ΡΡ ΠΏΠ»Π°ΡΡ Π·Π° ΡΠ΄Π°Π»Π΅Π½ΠΈΠ΅ ΠΈ ΡΡΠΈΠ»ΠΈΠ·Π°ΡΠΈΡ Π² Π΄ΠΎΠΏΠΎΠ»Π½Π΅Π½ΠΈΠ΅ ΠΊ ΡΡΡΠ°Π½ΠΎΠ²ΠΊΠ΅. ΠΠ»Π°Π½ΠΈΡΡΠΉΡΠ΅ Π·Π°ΠΏΠ»Π°ΡΠΈΡΡ ΠΎΡ 1400 Π΄ΠΎ 2200 Π΄ΠΎΠ»Π»Π°ΡΠΎΠ² Π·Π° ΠΊΠΎΠΌΠ½Π°ΡΡ ΠΏΠ»ΠΎΡΠ°Π΄ΡΡ 300 ΠΊΠ²Π°Π΄ΡΠ°ΡΠ½ΡΡ
ΡΡΡΠΎΠ², ΡΡΠΎΠ±Ρ ΡΠ±Π΅Π΄ΠΈΡΡΡΡ, ΡΡΠΎ Ρ Π²Π°Ρ Π΅ΡΡΡ ΠΌΠ΅ΡΡΠΎ Π΄Π»Ρ ΠΌΠ°Π½Π΅Π²ΡΠ° Π² Π²Π°ΡΠ΅ΠΌ Π±ΡΠ΄ΠΆΠ΅ΡΠ΅.
ΠΡΠ»ΠΈ Π²Ρ Π΄ΠΎΠ±Π°Π²Π»ΡΠ΅ΡΠ΅ Π»Π°ΠΌΠΈΠ½Π°Ρ Π² Π²Π°Π½Π½ΡΡ ΠΊΠΎΠΌΠ½Π°ΡΡ ΠΈΠ»ΠΈ Π½Π° ΠΊΡΡ
Π½Ρ, ΡΠ±Π΅Π΄ΠΈΡΠ΅ΡΡ, ΡΡΠΎ Π²Ρ Π²ΡΠ±ΡΠ°Π»ΠΈ Π²ΠΎΠ΄ΠΎΠ½Π΅ΠΏΡΠΎΠ½ΠΈΡΠ°Π΅ΠΌΡΠΉ Π»Π°ΠΌΠΈΠ½Π°Ρ.ΠΠ΅ΠΊΠΎΡΠΎΡΡΠ΅ Π±ΡΠ΅Π½Π΄Ρ ΠΈΡΠΏΠΎΠ»ΡΠ·ΡΡΡ ΡΠ΅ΡΠΌΠΈΠ½ Β«Π²ΠΎΠ΄ΠΎΠ½Π΅ΠΏΡΠΎΠ½ΠΈΡΠ°Π΅ΠΌΠΎΡΡΡΒ», Π½ΠΎ Π½Π° ΡΠ°ΠΌΠΎΠΌ Π΄Π΅Π»Π΅ ΠΎΠ½ΠΈ Π²ΠΎΠ΄ΠΎΠ½Π΅ΠΏΡΠΎΠ½ΠΈΡΠ°Π΅ΠΌΡ. ΠΡΡΡΠΈΠΉΒ Π²ΠΎΠ΄ΠΎΠ½Π΅ΠΏΡΠΎΠ½ΠΈΡΠ°Π΅ΠΌΡΠΉ Π»Π°ΠΌΠΈΠ½Π°ΡΒ Π·Π°ΡΠΈΡΠΈΡ Π²Π°ΡΠΈ ΠΏΠΎΠ»Ρ ΠΎΡ Π²Π»Π°Π³ΠΈ.
ΠΡΠΈ ΠΏΠΎΠ»Ρ Π½Π΅ ΠΏΠΎΠ·Π²ΠΎΠ»ΡΡΡ Π²ΠΎΠ΄Π΅ ΠΏΡΠΎΠ½ΠΈΠΊΠ°ΡΡ Π½Π° ΠΏΠΎΠ²Π΅ΡΡ
Π½ΠΎΡΡΡ, Π΄Π°ΠΆΠ΅ Π΅ΡΠ»ΠΈ ΠΎΠ½Π° Π½Π°Ρ
ΠΎΠ΄ΠΈΡΡΡ ΠΏΠΎΠ²Π΅ΡΡ
Π²Π°ΡΠΈΡ
ΠΏΠΎΠ»ΠΎΠ². Π£Π±Π΅Π΄ΠΈΡΠ΅ΡΡ, ΡΡΠΎ Π²Π°Ρ Π½ΠΎΠ²ΡΠΉ Π»Π°ΠΌΠΈΠ½Π°Ρ ΠΏΠΎΠ»Π½ΠΎΡΡΡΡ Π²ΠΎΠ΄ΠΎΠ½Π΅ΠΏΡΠΎΠ½ΠΈΡΠ°Π΅ΠΌ, Π° Π½Π΅ ΠΏΡΠΎΡΡΠΎ Π²ΠΎΠ΄ΠΎΠ½Π΅ΠΏΡΠΎΠ½ΠΈΡΠ°Π΅ΠΌ, ΠΈΠ½Π°ΡΠ΅ Π²Ρ ΡΠΈΡΠΊΡΠ΅ΡΠ΅ ΠΏΠΎΠ»ΡΡΠΈΡΡ Π½Π΅ΠΎΠ±ΡΠ°ΡΠΈΠΌΡΠ΅ ΠΏΠΎΠ²ΡΠ΅ΠΆΠ΄Π΅Π½ΠΈΡ, Π΅ΡΠ»ΠΈ ΡΠ°Π·Π»ΠΈΠ²Ρ ΠΈ Π²Π»Π°Π³Π° Π½Π΅ Π±ΡΠ΄ΡΡ Π²ΡΡΠ΅ΡΡΡ Π½Π°ΡΡΡ
ΠΎ ΡΡΠ°Π·Ρ ΠΏΠΎΡΠ»Π΅ ΠΊΠΎΠ½ΡΠ°ΠΊΡΠ°. ΠΡΠ»ΠΈ Π²Ρ Ρ
ΠΎΡΠΈΡΠ΅ Π·Π½Π°ΡΡ, ΠΊΠ°ΠΊ Π³ΠΈΠ΄ΡΠΎΠΈΠ·ΠΎΠ»ΠΈΡΠΎΠ²Π°ΡΡ Π»Π°ΠΌΠΈΠ½Π°Ρ, Π²Ρ ΠΌΠΎΠΆΠ΅ΡΠ΅ Π΄ΠΎΠ±Π°Π²ΠΈΡΡ ΡΠΈΠ»ΠΈΠΊΠΎΠ½ΠΎΠ²ΡΠΉ Π³Π΅ΡΠΌΠ΅ΡΠΈΠΊ ΠΏΠΎ ΠΏΠ΅ΡΠΈΠΌΠ΅ΡΡΡ ΠΈ ΠΏΠΎΠ΄ ΠΏΠ»ΠΈΠ½ΡΡΡΡ.ΠΡΠΎΡ ΠΏΡΠΎΡΡΠΎΠΉ ΡΠ°Π³ ΡΠΎΠ·Π΄Π°Π΅Ρ Π½Π΅ΠΏΡΠΎΠ½ΠΈΡΠ°Π΅ΠΌΠΎΠ΅ ΡΠΏΠ»ΠΎΡΠ½Π΅Π½ΠΈΠ΅ ΠΈ ΡΠ΅ΠΊΠΎΠΌΠ΅Π½Π΄ΡΠ΅ΡΡΡ Π΄Π»Ρ Π²Π°Π½Π½ΡΡ
ΠΊΠΎΠΌΠ½Π°Ρ, ΠΊΡΡ
ΠΎΠ½Ρ ΠΈ ΠΏΡΠ°ΡΠ΅ΡΠ½ΡΡ
.
ΠΡΠ»ΠΈ Π²Ρ ΠΏΡΠ΅Π΄ΠΏΠΎΡΠΈΡΠ°Π΅ΡΠ΅ ΡΠΊΠ»Π°Π΄ΡΠ²Π°ΡΡ Π»Π°ΠΌΠΈΠ½Π°Ρ ΡΠ°ΠΌΠΎΡΡΠΎΡΡΠ΅Π»ΡΠ½ΠΎ ΠΈΠ»ΠΈ Ρ Π²Π°Ρ Π΅ΡΡΡ Π²ΠΎΠΏΡΠΎΡΡ ΠΏΠΎ ΡΠ΅ΠΌΠΎΠ½ΡΡ, Π²ΠΎΡ Π½Π΅ΡΠΊΠΎΠ»ΡΠΊΠΎ Π±ΡΡΡΡΡΡ ΠΈ ΠΏΡΠΎΡΡΡΡ ΠΏΡΠ°ΠΊΡΠΈΡΠ΅ΡΠΊΠΈΡ ΡΡΠΊΠΎΠ²ΠΎΠ΄ΡΡΠ², ΠΊΠΎΡΠΎΡΡΠ΅ ΠΏΠΎΠΌΠΎΠ³ΡΡ Π²Π°ΠΌ Π² ΡΡΠΎΠΌ ΠΏΡΠΎΡΠ΅ΡΡΠ΅.
ΠΠ°ΠΊ ΡΠΊΠ»Π°Π΄ΡΠ²Π°ΡΡ Π»Π°ΠΌΠΈΠ½Π°Ρ
- ΠΠΎΠ΄ΡΡΠΈΡΠ°ΠΉΡΠ΅, ΡΠΊΠΎΠ»ΡΠΊΠΎ Π½Π°ΠΏΠΎΠ»ΡΠ½ΠΎΠ³ΠΎ ΠΏΠΎΠΊΡΡΡΠΈΡ Π²Π°ΠΌ Π½ΡΠΆΠ½ΠΎ, Π½ΠΎ ΠΊΡΠΏΠΈΡΠ΅ Π½Π° 10-15% Π±ΠΎΠ»ΡΡΠ΅, ΡΡΠΎΠ±Ρ ΡΡΠ΅ΡΡΡ ΠΎΡΡ ΠΎΠ΄Ρ.
- Π£Π·Π½Π°ΠΉΡΠ΅, ΠΊΠ°ΠΊ ΠΏΡΠ°Π²ΠΈΠ»ΡΠ½ΠΎ ΡΠ½ΠΈΠΌΠ°ΡΡ Π»Π°ΠΌΠΈΠ½Π°Ρ, Π΅ΡΠ»ΠΈ Π²Ρ ΠΏΠ»Π°Π½ΠΈΡΡΠ΅ΡΠ΅ Π·Π°ΠΌΠ΅Π½ΠΈΡΡ ΡΡΡΠ΅ΡΡΠ²ΡΡΡΠΈΠΉ Π»Π°ΠΌΠΈΠ½Π°Ρ.

- ΠΠ°ΡΠ½ΠΈΡΠ΅ Ρ Π΄Π°Π»ΡΠ½Π΅Π³ΠΎ ΠΊΠΎΠ½ΡΠ° ΠΊΠΎΠΌΠ½Π°ΡΡ ΠΈ ΠΈΠ·ΠΌΠ΅ΡΡΡΠ΅ Π΄ΠΎΡΠΊΠΈ, ΡΡΠΎΠ±Ρ ΠΎΠ½ΠΈ ΡΠ°ΡΠΏΠΎΠ»Π°Π³Π°Π»ΠΈΡΡ ΠΏΠ°ΡΠ°Π»Π»Π΅Π»ΡΠ½ΠΎ ΡΡΠ΅Π½Π΅.
- Π‘ ΠΏΠΎΠΌΠΎΡΡΡ ΡΠΈΡΠΊΡΠ»ΡΡΠ½ΠΎΠΉ ΠΏΠΈΠ»Ρ ΠΎΡΡΠ΅ΠΆΡΡΠ΅ Π΄ΠΎΡΠΊΠΈ Π»Π°ΠΌΠΈΠ½Π°ΡΠ° Π΄ΠΎ Π½ΡΠΆΠ½ΠΎΠ³ΠΎ ΡΠ°Π·ΠΌΠ΅ΡΠ°.
- ΠΡΠΏΠΎΠ»ΡΠ·ΡΠΉΡΠ΅ Π΄Π΅ΡΠ΅Π²ΡΠ½Π½ΡΠ΅ ΠΏΡΠΎΠΊΠ»Π°Π΄ΠΊΠΈ, ΡΡΠΎΠ±Ρ ΠΎΠ±Π΅ΡΠΏΠ΅ΡΠΈΡΡ Π²ΠΎΠ·ΠΌΠΎΠΆΠ½ΠΎΡΡΡ ΡΠ°ΡΡΠΈΡΠ΅Π½ΠΈΡ ΠΏΡΠΈ ΡΠΊΠ»Π°Π΄ΠΊΠ΅ ΠΊΠ°ΠΆΠ΄ΠΎΠΉ ΠΎΡΠ΄Π΅Π»ΡΠ½ΠΎΠΉ ΡΠ΅ΠΊΡΠΈΠΈ.
- ΠΡΠΈΠΊΡΠ΅ΠΏΠΈΡΠ΅ ΠΊΠ°ΠΆΠ΄ΡΡ ΠΏΠ»Π°Π½ΠΊΡ, ΠΏΠΎΠΌΠ΅ΡΡΠΈΠ² Π΅Π΅ Π½Π° ΡΠΎΠΎΡΠ²Π΅ΡΡΡΠ²ΡΡΡΡΡ Π΄Π΅ΡΠ°Π»Ρ ΠΏΠΎΠ΄ ΡΠ³Π»ΠΎΠΌ Π΄ΠΎ ΡΠ΅Π»ΡΠΊΠ°. ΠΠΎΠ²ΡΠΎΡΡΠΉΡΠ΅ ΡΡΠΎΡ ΠΏΡΠΎΡΠ΅ΡΡ ΡΡΠ΄ Π·Π° ΡΡΠ΄ΠΎΠΌ.
- ΠΡ ΠΌΠΎΠΆΠ΅ΡΠ΅ ΠΈΡΠΏΠΎΠ»ΡΠ·ΠΎΠ²Π°ΡΡ ΠΊΡΡΠΎΠΊ Π΄Π΅ΡΠ΅Π²Π° ΠΈ ΡΠ΅Π·ΠΈΠ½ΠΎΠ²ΡΠΉ ΠΌΠΎΠ»ΠΎΡΠΎΠΊ, ΡΡΠΎΠ±Ρ Π°ΠΊΠΊΡΡΠ°ΡΠ½ΠΎ ΠΏΠΎΡΡΡΡΠ°ΡΡ ΠΏΠΎ ΠΊΠ°ΠΆΠ΄ΠΎΠΉ Π΄ΠΎΡΠΊΠ΅.
- Π ΠΏΡΠΎΡΠ΅ΡΡΠ΅ ΡΠ°Π±ΠΎΡΡ ΠΏΡΠΎΠ²Π΅ΡΡΠΉΡΠ΅ Π½Π°Π»ΠΈΡΠΈΠ΅ Π·Π°Π·ΠΎΡΠΎΠ² ΠΈ ΠΏΠΎΠ²ΡΠΎΡΠ½ΠΎ Π·Π°ΠΊΡΠ΅ΠΏΠ»ΡΠΉΡΠ΅ ΠΊΠ°ΠΆΠ΄ΡΡ Π΄Π΅ΡΠ°Π»Ρ, ΡΡΠΎΠ±Ρ ΠΎΠ±Π΅ΡΠΏΠ΅ΡΠΈΡΡ ΡΠΎΠ²Π½ΡΡ Π±Π΅ΡΡΠΎΠ²Π½ΡΡ ΠΏΠΎΡΠ°Π΄ΠΊΡ.
- ΠΠ°Π½Π΅ΡΠΈΡΠ΅ Π³Π΅ΡΠΌΠ΅ΡΠΈΠΊ ΠΏΠΎ ΠΊΡΠ°ΡΠΌ ΠΊΠΎΠΌΠ½Π°ΡΡ (ΡΠ΅ΠΊΠΎΠΌΠ΅Π½Π΄ΡΠ΅ΡΡΡ ΠΏΡΠΎΠ·ΡΠ°ΡΠ½ΡΠΉ ΡΠΈΠ»ΠΈΠΊΠΎΠ½), ΡΡΠΎΠ±Ρ Π·Π°ΡΠΈΡΠΈΡΡ ΠΎΡΠ½ΠΎΠ²Π°Π½ΠΈΠ΅.
ΠΠ°ΠΊ ΡΠ΅Π·Π°ΡΡ Π»Π°ΠΌΠΈΠ½Π°Ρ
- ΠΡΡΠ΅ΠΆΡΡΠ΅ ΠΊΠ°ΠΆΠ΄ΡΠΉ ΡΠ»Π΅ΠΌΠ΅Π½Ρ Π½Π°ΠΏΠΎΠ»ΡΠ½ΠΎΠ³ΠΎ ΠΏΠΎΠΊΡΡΡΠΈΡ Ρ ΠΏΠΎΠΌΠΎΡΡΡ ΡΠΎΡΡΠΎΠ²ΠΎΡΠ½ΠΎΠΉ, Π½Π°ΡΡΠΎΠ»ΡΠ½ΠΎΠΉ, ΡΡΡΠ½ΠΎΠΉ ΠΈΠ»ΠΈ ΡΠΈΡΠΊΡΠ»ΡΡΠ½ΠΎΠΉ ΠΏΠΈΠ»Ρ.

- ΠΠ»Ρ Π³Π»Π°Π΄ΠΊΠΎΠ³ΠΎ ΡΠ΅Π·Π° ΡΠ΅ΠΊΠΎΠΌΠ΅Π½Π΄ΡΠ΅ΡΡΡ Π°Π»ΠΌΠ°Π·Π½ΡΠΉ Π΄ΠΈΡΠΊ.
- Π Π°Π·ΡΠ΅ΠΆΡΡΠ΅ ΠΊΠ°ΠΆΠ΄ΡΠΉ ΠΊΡΡΠΎΠΊ Π»Π°ΠΌΠΈΠ½Π°ΡΠ° Π»ΠΈΡΠ΅Π²ΠΎΠΉ ΡΡΠΎΡΠΎΠ½ΠΎΠΉ Π²Π²Π΅ΡΡ .
- ΠΠ΅Π΄Π»Π΅Π½Π½ΠΎ ΡΠ΅ΠΆΡΡΠ΅ ΠΊΠ°ΠΆΠ΄ΡΡ Π΄Π΅ΡΠ°Π»Ρ, ΡΡΠΎΠ±Ρ ΡΠ°Π·ΡΠ΅Π· Π±ΡΠ» ΠΏΡΡΠΌΡΠΌ.
- Π£Π΄Π°Π»ΠΈΡΠ΅ Π²ΡΠ΅ ΡΡΠ°ΡΡΠ΅ Π½Π°ΠΏΠΎΠ»ΡΠ½ΡΠ΅ ΠΏΠΎΠΊΡΡΡΠΈΡ, ΠΏΠΎΠ΄ΠΌΠ΅ΡΠΈΡΠ΅ ΠΈ ΠΏΡΠΎΠΏΡΠ»Π΅ΡΠΎΡΡΡΠ΅ ΠΎΡΡΠ°Π²ΡΠΈΠΉΡΡ ΠΌΡΡΠΎΡ.
- ΠΡΠ»ΠΈ Π²Π°Ρ Π»Π°ΠΌΠΈΠ½ΠΈΡΠΎΠ²Π°Π½Π½ΡΠΉ ΠΏΠΎΠ» Π½Π΅ ΠΈΠΌΠ΅Π΅Ρ ΠΏΡΠΈΠΊΡΠ΅ΠΏΠ»Π΅Π½Π½ΠΎΠΉ ΠΏΠΎΠ΄Π»ΠΎΠΆΠΊΠΈ, Π½Π°ΡΠ½ΠΈΡΠ΅ Ρ Π΄ΠΎΠ±Π°Π²Π»Π΅Π½ΠΈΡ ΠΏΠΎΠ΄Π»ΠΎΠΆΠΊΠΈ, ΡΡΠΎΠ±Ρ ΠΏΠΎΠΊΡΡΡΡ Π²Π΅ΡΡ ΡΠ΅ΡΠ½ΠΎΠ²ΠΎΠΉ ΠΏΠΎΠ».
- ΠΠ΅ΡΠ΅Π΄ Π½Π°ΡΠ°Π»ΠΎΠΌ ΡΡΡΠ°Π½ΠΎΠ²ΠΊΠΈ ΡΠ½ΠΈΠΌΠΈΡΠ΅ Π²ΡΠ΅ ΠΏΠ»ΠΈΠ½ΡΡΡΠ° ΠΈ ΠΎΠ±ΡΠΈΠ²ΠΊΡ ΠΊΠΎΠΌΠ½Π°ΡΡ. ΠΡΠ»ΠΎΠΆΠΈΡΠ΅ ΠΈΡ Π² ΡΡΠΎΡΠΎΠ½Ρ Π΄ΠΎ Π·Π°Π²Π΅ΡΡΠ΅Π½ΠΈΡ ΡΡΡΠ°Π½ΠΎΠ²ΠΊΠΈ.
- Π Π°Π·Π»ΠΎΠΆΠΈΡΠ΅ ΠΏΠ»ΠΈΡΠΊΡ ΠΈΠ»ΠΈ Π΄ΠΎΡΠΊΠΈ, ΠΏΡΠ΅ΠΆΠ΄Π΅ ΡΠ΅ΠΌ ΡΠ΅Π·Π°ΡΡ ΠΈ ΡΠΊΠ»Π°Π΄ΡΠ²Π°ΡΡ ΠΈΡ , ΡΡΠΎΠ±Ρ ΠΎΠΏΡΠ΅Π΄Π΅Π»ΠΈΡΡ Π½Π°ΠΈΠ»ΡΡΡΡΡ ΡΠ°ΡΠΊΠ»Π°Π΄ΠΊΡ.
- ΠΠ±ΡΠ΅ΠΆΡΡΠ΅ ΡΠΏΡΠ½ΡΡ Ρ Π΄ΠΎΡΠΎΠΊ, ΠΊΠΎΡΠΎΡΡΠ΅ Π±ΡΠ΄ΡΡ ΡΡΡΠ°Π½ΠΎΠ²Π»Π΅Π½Ρ Π½Π΅ΠΏΠΎΡΡΠ΅Π΄ΡΡΠ²Π΅Π½Π½ΠΎ Ρ ΡΡΠ΅Π½Ρ.
- ΠΠ°ΡΠ½ΠΈΡΠ΅ Ρ ΡΠΊΠ»Π°Π΄ΠΊΠΈ ΠΏΠ΅ΡΠ²ΠΎΠ³ΠΎ ΡΡΠ΄Π° Π½Π° ΡΠ°ΠΌΠΎΠΉ Π΄Π»ΠΈΠ½Π½ΠΎΠΉ ΡΡΠ΅Π½Π΅, Π½Π°ΡΠΈΠ½Π°Ρ Ρ ΠΏΡΠ°Π²ΠΎΠΉ ΡΡΠΎΡΠΎΠ½Ρ ΠΈ ΡΠ°Π±ΠΎΡΠ°Ρ ΡΠ»Π΅Π²Π°. Π Π°Π·ΠΌΠ΅ΡΡΠΈΡΠ΅ ΠΊΠ°ΠΆΠ΄ΡΡ ΡΠ°ΡΡΡ Π½Π° ΡΠ°ΡΡΡΠΎΡΠ½ΠΈΠΈ ΠΎΡ ΒΌ Π΄ΠΎ 3/8 Π΄ΡΠΉΠΌΠ° Π΄ΡΡΠ³ ΠΎΡ Π΄ΡΡΠ³Π°, ΠΈΡΠΏΠΎΠ»ΡΠ·ΡΡ ΠΏΡΠΎΠΊΠ»Π°Π΄ΠΊΠΈ.

- ΠΠΎΠ²ΡΠΎΡΠΈΡΠ΅ ΠΏΡΠΎΡΠ΅ΡΡ Π΄Π»Ρ ΠΊΠ°ΠΆΠ΄ΠΎΠ³ΠΎ ΡΡΠ΄Π°, Π²ΡΠΊΠ»Π°Π΄ΡΠ²Π°Ρ ΠΈΡ ΠΏΠΎ ΠΎΡΠ΄Π΅Π»ΡΠ½ΠΎΡΡΠΈ, ΡΠΈΠΊΡΠΈΡΡΡ Π²ΡΠ΅ Π΄ΠΎΡΠΊΠΈ ΠΈΠ»ΠΈ ΠΏΠ»ΠΈΡΠΊΠΈ Π½Π° ΠΌΠ΅ΡΡΠ΅, ΠΏΠΎΠΊΠ° Π½Π΅ Π΄ΠΎΠΉΠ΄Π΅ΡΠ΅ Π΄ΠΎ ΠΏΡΠΎΡΠΈΠ²ΠΎΠΏΠΎΠ»ΠΎΠΆΠ½ΠΎΠΉ ΡΡΠΎΡΠΎΠ½Ρ ΠΊΠΎΠΌΠ½Π°ΡΡ.
ΠΠ°ΠΊ ΡΡΡΡΠ°Π½ΠΈΡΡ ΡΠ°ΡΠ°ΠΏΠΈΠ½Ρ Π½Π° Π»Π°ΠΌΠΈΠ½Π°ΡΠ΅
- ΠΠ°ΠΉΠ΄ΠΈΡΠ΅ ΠΊΠΎΠΌΠΏΠ»Π΅ΠΊΡ Π΄Π»Ρ ΡΠ΅ΠΌΠΎΠ½ΡΠ° Π»Π°ΠΌΠΈΠ½Π°ΡΠ°, ΠΊΠΎΡΠΎΡΡΠΉ ΡΠΎΠΎΡΠ²Π΅ΡΡΡΠ²ΡΠ΅Ρ ΡΠ²Π΅ΡΡ Π²Π°ΡΠ΅Π³ΠΎ ΠΏΠΎΠ»Π°. ΠΡΠΎ ΠΌΠΎΠΆΠ΅Ρ Π±ΡΡΡ ΡΠ²Π΅ΡΠ½Π°Ρ Π·Π°ΠΌΠ°Π·ΠΊΠ° ΠΈΠ»ΠΈ Π²ΠΎΡΠΊΠΎΠ²ΡΠ΅ ΠΊΠ°ΡΠ°Π½Π΄Π°ΡΠΈ Π΄Π»Ρ ΡΠ΅ΠΌΠΎΠ½ΡΠ° ΠΌΠ΅Π»ΠΊΠΈΡ ΡΠ°ΡΠ°ΠΏΠΈΠ½ ΠΈ ΠΏΠΎΡΠ΅ΡΡΠΎΡΡΠ΅ΠΉ.
- ΠΠΊΠΊΡΡΠ°ΡΠ½ΠΎ Π½Π°Π½Π΅ΡΠΈΡΠ΅ Π·Π°ΠΌΠ°Π·ΠΊΡ ΠΈΠ»ΠΈ Π²ΠΎΡΠΊ Π½Π° ΡΠ°ΡΠ°ΠΏΠΈΠ½Ρ, ΡΡΠΎΠ±Ρ Π·Π°ΠΏΠΎΠ»Π½ΠΈΡΡ ΠΏΡΠΎΠ±Π΅Π»Ρ. ΠΠ°ΠΌΠ°Π·ΠΊΠ° ΠΈΠ΄Π΅Π°Π»ΡΠ½Π° Π΄Π»Ρ Π±ΠΎΠ»Π΅Π΅ ΡΠΈΡΠΎΠΊΠΈΡ ΡΠ°ΡΠ°ΠΏΠΈΠ½, ΡΠ°ΠΊ ΠΊΠ°ΠΊ Π²ΠΎΡΠΊ ΠΌΠΎΠΆΠ΅Ρ Π½Π΅Π΄ΠΎΡΡΠ°ΡΠΎΡΠ½ΠΎ ΠΏΠΎΠΊΡΡΡΡ ΠΈΡ .
- ΠΡΠΏΠΎΠ»ΡΠ·ΡΠΉΡΠ΅ ΡΠΏΠ°ΡΠ΅Π»Ρ, ΡΡΠΎΠ±Ρ ΡΠ°ΡΠΏΡΠ΅Π΄Π΅Π»ΠΈΡΡ Π·Π°ΠΌΠ°Π·ΠΊΡ ΠΏΠΎ ΡΠ°ΡΠ°ΠΏΠΈΠ½Π΅, ΡΠ΄Π΅ΡΠΆΠΈΠ²Π°Ρ Π΅Π΅ ΠΏΠΎΠ΄ ΡΠ³Π»ΠΎΠΌ 45 Π³ΡΠ°Π΄ΡΡΠΎΠ², ΠΊΠΎΠ³Π΄Π° Π½Π°ΠΆΠΈΠΌΠ°Π΅ΡΠ΅ Π½Π° Π·Π°ΡΠΈΡΠ΅Π½Π½ΡΡ ΠΎΠ±Π»Π°ΡΡΡ.
- ΠΡΠ΅ΠΆΠ΄Π΅ ΡΠ΅ΠΌ Ρ ΠΎΠ΄ΠΈΡΡ ΠΏΠΎ ΡΡΠΎΠΉ ΡΠ°ΡΡΠΈ ΠΏΠΎΠ»Π°, Π΄Π°ΠΉΡΠ΅ ΡΠΏΠ°ΠΊΠ»Π΅Π²ΠΊΠ΅ Π·Π°ΡΠ²Π΅ΡΠ΄Π΅ΡΡ.
- ΠΠΎΠ·ΠΌΠΎΠΆΠ½ΠΎ, Π²Π°ΠΌ ΠΏΡΠΈΠ΄Π΅ΡΡΡ Π·Π°ΠΌΠ΅Π½ΠΈΡΡ ΠΏΠ»Π°Π½ΠΊΠΈ Π»Π°ΠΌΠΈΠ½Π°ΡΠ° ΠΈΠ»ΠΈ ΠΏΠ»ΠΈΡΠΊΡ Ρ ΠΎΡΠ΅Π½Ρ Π³Π»ΡΠ±ΠΎΠΊΠΈΠΌΠΈ ΡΠ°ΡΠ°ΠΏΠΈΠ½Π°ΠΌΠΈ, ΠΊΠΎΡΠΎΡΡΠ΅ Π½Π΅Π²ΠΎΠ·ΠΌΠΎΠΆΠ½ΠΎ ΡΡΡΡΠ°Π½ΠΈΡΡ ΡΡΠ°Π΄ΠΈΡΠΈΠΎΠ½Π½ΡΠΌΠΈ ΠΌΠ΅ΡΠΎΠ΄Π°ΠΌΠΈ.
ΠΠ°ΠΊ ΡΠ΄Π°Π»ΠΈΡΡ ΠΊΡΠ°ΡΠΊΡ Ρ Π»Π°ΠΌΠΈΠ½Π°ΡΠ°
- Π£Π΄Π°Π»ΠΈΡΠ΅ ΡΡΡ
Π»ΡΡ Π³ΡΡΠ·Ρ ΠΈ ΠΌΡΡΠΎΡ Ρ ΠΏΠΎΠΌΠΎΡΡΡ ΠΏΡΠ»Π΅ΡΠΎΡΠ°, Π·Π°ΡΠ΅ΠΌ ΠΏΡΠΎΡΡΠΈΡΠ΅ ΠΏΠΎΡΠ°ΠΆΠ΅Π½Π½ΡΠΉ ΡΡΠ°ΡΡΠΎΠΊ ΡΠ²Π°Π±ΡΠΎΠΉ ΠΈΠ»ΠΈ ΡΠΊΠ°Π½ΡΡ ΠΈΠ· ΠΌΠΈΠΊΡΠΎΡΠΈΠ±ΡΡ.

- ΠΠ°Π½Π΅ΡΠΈΡΠ΅ ΡΡΠ΅Π΄ΡΡΠ²ΠΎ Π΄Π»Ρ ΡΠ΄Π°Π»Π΅Π½ΠΈΡ ΠΊΡΠ°ΡΠΊΠΈ ΠΈΠ»ΠΈ ΠΎΠ±Π΅Π·ΠΆΠΈΡΠΈΠ²Π°ΡΠ΅Π»Ρ Π΄Π»Ρ ΠΏΠΎΠ»Π° Π½Π° Π²ΡΡΠΎΡ ΡΡΡ ΠΊΡΠ°ΡΠΊΡ Π’ΠΠΠ¬ΠΠ Ρ ΠΏΠΎΠΌΠΎΡΡΡ Ρ Π»ΠΎΠΏΡΠ°ΡΠΎΠ±ΡΠΌΠ°ΠΆΠ½ΠΎΠΉ ΡΡΡΠΏΠΊΠΈ.ΠΠ°ΠΉΡΠ΅ ΡΠΈΡΡΡΡΠ΅ΠΌΡ ΡΡΠ΅Π΄ΡΡΠ²Ρ ΠΏΡΠΎΠ½ΠΈΠΊΠ½ΡΡΡ Π² ΠΊΡΠ°ΡΠΊΡ Π² ΡΠ΅ΡΠ΅Π½ΠΈΠ΅ Π½Π΅ΡΠΊΠΎΠ»ΡΠΊΠΈΡ ΠΌΠΈΠ½ΡΡ.
- ΠΠ°ΡΠΈΡΡΠΎ ΠΏΡΠΎΡΡΠΈΡΠ΅ ΠΏΠΎΠ²Π΅ΡΡ Π½ΠΎΡΡΡ ΡΡΡ ΠΎΠΉ ΡΡΡΠΏΠΊΠΎΠΉ ΠΈ ΠΏΡΠΈ Π½Π΅ΠΎΠ±Ρ ΠΎΠ΄ΠΈΠΌΠΎΡΡΠΈ ΠΏΠΎΠ²ΡΠΎΡΠ½ΠΎ Π½Π°Π½Π΅ΡΠΈΡΠ΅ ΡΡΠ΅Π΄ΡΡΠ²ΠΎ Π΄Π»Ρ ΡΠ΄Π°Π»Π΅Π½ΠΈΡ ΠΊΡΠ°ΡΠΊΠΈ, ΡΡΠΎΠ±Ρ ΡΠ΄Π°Π»ΠΈΡΡ ΠΎΡΡΠ°Π²ΡΡΡΡΡ ΠΊΡΠ°ΡΠΊΡ.
- Π‘Π»Π΅Π΄ΡΠΉΡΠ΅ ΡΠ΅ΠΌ ΠΆΠ΅ ΡΠΊΠ°Π·Π°Π½ΠΈΡΠΌ, ΡΡΠΎ ΡΠΊΠ°Π·Π°Π½Ρ Π²ΡΡΠ΅, Π½ΠΎ ΠΈΡΠΏΠΎΠ»ΡΠ·ΡΠΉΡΠ΅ ΡΡΠ΅Π΄ΡΡΠ²ΠΎ Π΄Π»Ρ ΠΌΡΡΡΡ ΠΎΠΊΠΎΠ½ Π½Π° ΠΎΡΠ½ΠΎΠ²Π΅ Π°ΠΌΠΌΠΈΠ°ΠΊΠ° Π²ΠΌΠ΅ΡΡΠΎ ΡΡΠ΅Π΄ΡΡΠ² Π΄Π»Ρ ΡΠ΄Π°Π»Π΅Π½ΠΈΡ ΠΊΡΠ°ΡΠΊΠΈ ΠΈΠ»ΠΈ ΠΎΠ±Π΅Π·ΠΆΠΈΡΠΈΠ²Π°ΡΡΠΈΡ ΡΡΠ΅Π΄ΡΡΠ² Π΄Π»Ρ ΠΏΠΎΠ»Π°.
- ΠΡ ΡΠ°ΠΊΠΆΠ΅ ΠΌΠΎΠΆΠ΅ΡΠ΅ ΠΈΡΠΏΠΎΠ»ΡΠ·ΠΎΠ²Π°ΡΡ ΠΆΠΈΠ΄ΠΊΠΎΡΡΡ Π΄Π»Ρ ΡΠ½ΡΡΠΈΡ Π»Π°ΠΊΠ° Ρ Π°ΡΠ΅ΡΠΎΠ½ΠΎΠΌ, ΡΡΠΎΠ±Ρ ΡΠ΄Π°Π»ΠΈΡΡ ΠΎΡΡΠ°ΡΠΊΠΈ ΠΊΡΠ°ΡΠΊΠΈ.
- ΠΠΎΡΠ»Π΅ ΡΠ΄Π°Π»Π΅Π½ΠΈΡ ΠΏΡΡΠ΅Π½ Π²ΡΠ΅Π³Π΄Π° ΠΏΡΠΎΠΌΡΠ²Π°ΠΉΡΠ΅ Π»Π°ΠΌΠΈΠ½ΠΈΡΠΎΠ²Π°Π½Π½ΡΠ΅ ΠΏΠΎΠ»Ρ ΡΠ΅ΠΏΠ»ΠΎΠΉ Π²ΠΎΠ΄ΠΎΠΉ ΠΈ ΡΡΠ°ΡΠ΅Π»ΡΠ½ΠΎ Π²ΡΡΡΡΠΈΡΠ΅ ΠΈΡ .
ΠΠ°ΠΊ ΡΠΊΠ»Π°Π΄ΡΠ²Π°ΡΡ Π»Π°ΠΌΠΈΠ½Π°Ρ Π½Π° Π»Π΅ΡΡΠ½ΠΈΡΡ
- ΠΠ°ΠΊΠ»Π΅ΠΉΡΠ΅ ΠΊΡΠ°ΠΉ ΡΡΡΠΏΠ΅Π½ΠΈ Π½Π° ΠΊΠ°ΠΆΠ΄ΡΡ ΡΠΈΡΡΡΡ, ΡΡΡ
ΡΡ ΡΡΡΠΏΠ΅Π½ΡΠΊΡ, ΠΈΡΠΏΠΎΠ»ΡΠ·ΡΡ ΠΏΡΠΎΡΠ½ΡΠΉ ΠΊΠ»Π΅ΠΉ.

- ΠΡΡΠ΅ΠΆΡΡΠ΅ ΠΊΠ°ΠΆΠ΄ΡΠΉ ΠΊΡΡΠΎΠΊ Π»Π°ΠΌΠΈΠ½Π°ΡΠ°, ΡΡΠΎΠ±Ρ ΠΎΠ½ ΡΠΎΠΎΡΠ²Π΅ΡΡΡΠ²ΠΎΠ²Π°Π» ΡΠΈΡΠΈΠ½Π΅, Π³Π»ΡΠ±ΠΈΠ½Π΅ ΠΈ Π΄Π»ΠΈΠ½Π΅ ΠΊΠ°ΠΆΠ΄ΠΎΠΉ ΡΡΡΠΏΠ΅Π½ΡΠΊΠΈ.
- ΠΠ°ΡΠΈΠ½Π°Ρ Ρ Π²Π΅ΡΡ Π½Π΅ΠΉ ΡΠ°ΡΡΠΈ Π»Π΅ΡΡΠ½ΠΈΡΡ, ΠΏΡΠΈΠΊΡΠ΅ΠΏΠΈΡΠ΅ ΠΊΠ°ΠΆΠ΄ΡΠΉ ΠΊΡΡΠΎΠΊ Π»Π°ΠΌΠΈΠ½Π°ΡΠ° ΠΊ Π²Π΅ΡΡ Π½Π΅ΠΉ ΡΠ°ΡΡΠΈ Π»Π΅ΡΡΠ½ΠΈΡΡ Ρ ΠΏΠΎΠΌΠΎΡΡΡ ΠΏΠΈΡΡΠΎΠ»Π΅ΡΠ° Π΄Π»Ρ Π³Π²ΠΎΠ·Π΄Π΅ΠΉ.
- ΠΡΠΏΠΎΠ»Π½ΠΈΡΠ΅ ΡΡ ΠΆΠ΅ ΠΏΡΠΎΡΠ΅Π΄ΡΡΡ Π΄Π»Ρ ΠΏΠΎΠ΄ΡΡΡΠΏΠ΅Π½ΠΊΠΎΠ² ΠΈΠ»ΠΈ Π²Π΅ΡΡΠΈΠΊΠ°Π»ΡΠ½ΠΎΠΉ ΡΠ°ΡΡΠΈ Π»Π΅ΡΡΠ½ΠΈΡΡ.
- Π Π·Π°Π²Π΅ΡΡΠ΅Π½ΠΈΠ΅ ΠΏΡΠΈΠΊΡΠ΅ΠΏΠΈΡΠ΅ Π²ΡΡΡΡΠΏ ΡΡΡΠΏΠ΅Π½ΠΈ (Π΄Π΅ΡΠ°Π»Ρ, Π·Π°ΠΊΡΡΠ²Π°ΡΡΠ°Ρ ΠΊΡΠ°ΠΉ ΠΊΠ°ΠΆΠ΄ΠΎΠΉ ΡΡΡΠΏΠ΅Π½ΠΈ) Ρ ΠΏΠΎΠΌΠΎΡΡΡ Π²ΠΈΠ½ΡΠΎΠ².
ΠΠ°ΠΊ ΡΠΊΠ»Π°Π΄ΡΠ²Π°ΡΡ Π»Π°ΠΌΠΈΠ½ΠΈΡΠΎΠ²Π°Π½Π½ΡΠΉ Π΄Π΅ΡΠ΅Π²ΡΠ½Π½ΡΠΉ ΠΏΠΎΠ»Β Π½Π° Π±Π΅ΡΠΎΠ½
- Π‘Π½ΠΈΠΌΠΈΡΠ΅ Π²ΡΡ ΠΎΡΠ΄Π΅Π»ΠΊΡ ΠΈ ΠΏΠ»ΠΈΠ½ΡΡΡΡ, Π·Π°ΡΠ΅ΠΌ Π²ΡΡΠΎΠ²Π½ΡΠΉΡΠ΅ Π±Π΅ΡΠΎΠ½ Ρ ΠΏΠΎΠΌΠΎΡΡΡ Π½Π°ΠΏΠΎΠ»Π½ΠΈΡΠ΅Π»Ρ Π΄Π»Ρ Π±Π΅ΡΠΎΠ½Π° ΠΈΠ»ΠΈ Π²ΡΡΠ°Π²Π½ΠΈΠ²Π°ΡΡΠ΅ΠΉ ΡΠΌΠ΅ΡΠΈ, ΡΡΠΎΠ±Ρ ΠΎΠ±Π΅ΡΠΏΠ΅ΡΠΈΡΡ ΡΠΎΠ²Π½ΡΡ ΠΏΠ»ΠΎΡΠΊΡΡ ΠΏΠΎΠ²Π΅ΡΡ Π½ΠΎΡΡΡ.
- Π£Π»ΠΎΠΆΠΈΡΠ΅ ΠΏΠ°ΡΠΎΠΈΠ·ΠΎΠ»ΡΡΠΈΡ Π² ΡΠΎΠΎΡΠ²Π΅ΡΡΡΠ²ΠΈΠΈ Ρ ΡΠΊΠ°Π·Π°Π½ΠΈΡΠΌΠΈ ΠΏΡΠΎΠΈΠ·Π²ΠΎΠ΄ΠΈΡΠ΅Π»Ρ.
- ΠΡΠΏΠΎΠ»Π½ΠΈΡΠ΅ ΡΠ΅ ΠΆΠ΅ Π΄Π΅ΠΉΡΡΠ²ΠΈΡ Π΄Π»Ρ ΡΠΊΠ»Π°Π΄ΠΊΠΈ Π»Π°ΠΌΠΈΠ½Π°ΡΠ°, ΡΡΠΎ ΠΈ Π΄Π»Ρ ΠΎΡΡΠ°Π»ΡΠ½ΠΎΠΉ ΡΠ°ΡΡΠΈ Π²Π°ΡΠ΅Π³ΠΎ Π΄ΠΎΠΌΠ°, Π΄Π»Ρ ΡΡΠ°ΡΡΠΊΠΎΠ² Ρ Π±Π΅ΡΠΎΠ½Π½ΡΠΌ ΠΏΠΎΠ»ΠΎΠΌ.
- ΠΡΠΈ ΡΠΊΠ»Π°Π΄ΠΊΠ΅ Π»Π°ΠΌΠΈΠ½Π°ΡΠ° Π½Π° Π½ΠΎΠ²ΡΠΉ Π±Π΅ΡΠΎΠ½ Π΄Π°ΠΉΡΠ΅ Π±Π΅ΡΠΎΠ½Ρ Π²ΡΡΠΎΡ
Π½ΡΡΡ Π½Π΅ ΠΌΠ΅Π½Π΅Π΅ 30 Π΄Π½Π΅ΠΉ, ΠΏΡΠ΅ΠΆΠ΄Π΅ ΡΠ΅ΠΌ ΡΠΊΠ»Π°Π΄ΡΠ²Π°ΡΡ Π½ΠΎΠ²ΡΠ΅ ΠΏΠΎΠ»Ρ.

ΠΠ°ΠΌΠΈΠ½ΠΈΡΠΎΠ²Π°Π½Π½ΡΠ΅ Π½Π°ΠΏΠΎΠ»ΡΠ½ΡΠ΅ ΠΏΠΎΠΊΡΡΡΠΈΡ Π² ΡΡΠ°Π²Π½Π΅Π½ΠΈΠΈ Ρ Π΄ΡΡΠ³ΠΈΠΌΠΈ ΡΠΈΠΏΠ°ΠΌΠΈ Π½Π°ΠΏΠΎΠ»ΡΠ½ΡΡ ΠΏΠΎΠΊΡΡΡΠΈΠΉ
ΠΡΠ»ΠΈ Π²Ρ Π²ΡΠ΅ Π΅ΡΠ΅ Π½Π΅ ΡΠ²Π΅ΡΠ΅Π½Ρ, ΠΏΠΎΠ΄Ρ ΠΎΠ΄ΠΈΡ Π»ΠΈ Π²Π°ΠΌ Π»Π°ΠΌΠΈΠ½Π°Ρ, Π²ΠΎΡ Π½Π΅ΡΠΊΠΎΠ»ΡΠΊΠΎ Π±ΡΡΡΡΡΡ ΡΡΠ°Π²Π½Π΅Π½ΠΈΠΉ ΠΌΠ΅ΠΆΠ΄Ρ Π»Π°ΠΌΠΈΠ½Π°ΡΠΎΠΌ ΠΈ Π½Π΅ΠΊΠΎΡΠΎΡΡΠΌΠΈ Π΄ΡΡΠ³ΠΈΠΌΠΈ ΠΏΠΎΠΏΡΠ»ΡΡΠ½ΡΠΌΠΈ ΡΠΈΠΏΠ°ΠΌΠΈ Π½Π°ΠΏΠΎΠ»ΡΠ½ΡΡ ΠΏΠΎΠΊΡΡΡΠΈΠΉ.
ΠΠ°ΠΌΠΈΠ½Π°Ρ ΠΏΡΠΎΡΠΈΠ² Π²ΠΈΠ½ΠΈΠ»ΠΎΠ²ΠΎΠ³ΠΎ Π½Π°ΠΏΠΎΠ»ΡΠ½ΠΎΠ³ΠΎ ΠΏΠΎΠΊΡΡΡΠΈΡ
ΠΠΎΠ» ΠΈΠ· Π»Π°ΠΌΠΈΠ½Π°ΡΠ° ΠΏΡΠΎΡΡ Π² ΡΠΊΠ»Π°Π΄ΠΊΠ΅ ΠΈ ΡΠΎΡΡΠΎΠΈΡ ΠΈΠ· ΠΏΠ»Π°Π½ΠΎΠΊ, ΠΊΠΎΡΠΎΡΡΠ΅ ΡΠΎΠ΅Π΄ΠΈΠ½ΡΡΡΡΡ Π²ΠΌΠ΅ΡΡΠ΅, ΠΎΠ±ΡΠ°Π·ΡΡ ΠΏΠ»Π°Π²Π°ΡΡΠΈΠΉ ΠΏΠΎΠ». ΠΠ°ΠΌΠΈΠ½Π°Ρ, ΠΊΠ°ΠΊ ΠΏΡΠ°Π²ΠΈΠ»ΠΎ, Π΄Π΅ΡΠ΅Π²Π»Π΅ Π²ΠΈΠ½ΠΈΠ»Π°, ΡΡΠΎ Π΄Π΅Π»Π°Π΅Ρ Π΅Π³ΠΎ ΠΎΡΠ»ΠΈΡΠ½ΡΠΌ Π²ΡΠ±ΠΎΡΠΎΠΌ Π΄Π»Ρ ΠΎΠ±Π½ΠΎΠ²Π»Π΅Π½ΠΈΡ Π΄ΠΎΠΌΠ° Ρ ΠΎΠ³ΡΠ°Π½ΠΈΡΠ΅Π½Π½ΡΠΌ Π±ΡΠ΄ΠΆΠ΅ΡΠΎΠΌ.ΠΠΈΠ½ΠΈΠ»ΠΎΠ²ΡΠ΅ ΠΏΠΎΠ»Ρ ΡΠ°ΠΊΠΆΠ΅ ΠΏΠΎΡΡΠ°Π²Π»ΡΡΡΡΡ Π² Π²ΠΈΠ΄Π΅ Π»ΠΈΡΡΠΎΠ², ΠΊΠΎΡΠΎΡΡΠ΅ ΠΎΡΠ΅Π½Ρ Π»Π΅Π³ΠΊΠΎ ΠΌΠΎΠ½ΡΠΈΡΠΎΠ²Π°ΡΡ, ΠΎΠ΄Π½Π°ΠΊΠΎ ΡΡΠ΅Π±ΡΠ΅ΡΡΡ ΡΠΏΠ΅ΡΠΈΠ°Π»ΡΠ½ΡΠΉ ΠΊΠ»Π΅ΠΉ, ΡΡΠΎΠ±Ρ Π²ΠΈΠ½ΠΈΠ»ΠΎΠ²ΠΎΠ΅ ΠΏΠΎΠΊΡΡΡΠΈΠ΅ Π±ΡΠ»ΠΎ ΠΏΡΠΈΠΊΡΠ΅ΠΏΠ»Π΅Π½ΠΎ ΠΊ ΠΎΡΠ½ΠΎΠ²Π°Π½ΠΈΡ. ΠΠ°ΠΌΠΈΠ½Π°Ρ Π»ΡΡΡΠ΅ Π·Π°ΡΠΈΡΠ°Π΅Ρ ΠΎΠΊΡΡΠΆΠ°ΡΡΡΡ ΡΡΠ΅Π΄Ρ, Π° Π²ΠΈΠ½ΠΈΠ» Π»ΡΡΡΠ΅ Π·Π°ΡΠΈΡΠ°Π΅Ρ ΠΎΡ Π²Π»Π°Π³ΠΈ. ΠΠ°ΠΌΠΈΠ½Π°Ρ ΠΈΠ·Π³ΠΎΡΠ°Π²Π»ΠΈΠ²Π°Π΅ΡΡΡ ΠΈΠ· Π΄Π΅ΡΠ΅Π²Π° ΠΈ Π΄ΡΡΠ³ΠΈΡ
ΠΌΠ°ΡΠ΅ΡΠΈΠ°Π»ΠΎΠ², Π° Π²ΠΈΠ½ΠΈΠ» ΠΏΠΎΠ»Π½ΠΎΡΡΡΡ ΡΠΈΠ½ΡΠ΅ΡΠΈΡΠ΅ΡΠΊΠΈΠΉ. Π Π°Π·Π»ΠΈΡΠΈΠ΅ ΠΌΠ΅ΠΆΠ΄Ρ Π²ΠΈΠ½ΠΈΠ»ΠΎΠ²ΡΠΌ ΠΈ Π»Π°ΠΌΠΈΠ½ΠΈΡΠΎΠ²Π°Π½Π½ΡΠΌ Π½Π°ΠΏΠΎΠ»ΡΠ½ΡΠΌ ΠΏΠΎΠΊΡΡΡΠΈΠ΅ΠΌΒ Π² ΠΎΡΠ½ΠΎΠ²Π½ΠΎΠΌ Π·Π°ΠΊΠ»ΡΡΠ°Π΅ΡΡΡ Π² ΠΌΠ°ΡΠ΅ΡΠΈΠ°Π»Π°Ρ
, ΠΈΡΠΏΠΎΠ»ΡΠ·ΡΠ΅ΠΌΡΡ
Π΄Π»Ρ Π΅Π³ΠΎ ΠΏΡΠΎΠΈΠ·Π²ΠΎΠ΄ΡΡΠ²Π°.
Π‘ΠΌΠΎΡΡΠΈΡΠ΅ Π½Π°ΡΠ΅ ΠΏΠΎΠ»Π½ΠΎΠ΅ ΡΡΠ°Π²Π½Π΅Π½ΠΈΠ΅.
ΠΈ ΠΏΠ°ΡΠΊΠ΅ΡΠ½ΡΠ΅ ΠΏΠΎΠ»Ρ
ΠΠ°ΡΠΊΠ΅ΡΠ½ΡΠ΅ ΠΏΠΎΠ»ΡΠ½Π°ΠΌΠ½ΠΎΠ³ΠΎ Π΄ΠΎΡΠΎΠΆΠ΅ Π»Π°ΠΌΠΈΠ½Π°ΡΠ° ΠΈ ΠΈΠ·Π³ΠΎΡΠ°Π²Π»ΠΈΠ²Π°ΡΡΡΡ ΠΈΠ· Π½Π°ΡΡΡΠ°Π»ΡΠ½ΠΎΠ³ΠΎ Π΄Π΅ΡΠ΅Π²Π°.ΠΠ°ΠΌ Π½ΡΠΆΠ½ΠΎ Π±ΡΠ΄Π΅Ρ Π½Π°Π½ΠΎΡΠΈΡΡ Π³Π΅ΡΠΌΠ΅ΡΠΈΠΊ Π½Π° ΠΏΠ°ΡΠΊΠ΅ΡΠ½ΡΠ΅ ΠΏΠΎΠ»Ρ ΠΎΠ΄ΠΈΠ½ ΡΠ°Π· Π² Π³ΠΎΠ΄, ΡΡΠΎΠ±Ρ Π·Π°ΡΠΈΡΠΈΡΡ ΠΈΡ . ΠΠ°ΠΌΠΈΠ½ΠΈΡΠΎΠ²Π°Π½Π½ΡΠΉ ΠΏΠΎΠ» Π½Π΅ ΡΡΠ΅Π±ΡΠ΅Ρ Π΄ΠΎΠΏΠΎΠ»Π½ΠΈΡΠ΅Π»ΡΠ½ΠΎΠ³ΠΎ Π³Π΅ΡΠΌΠ΅ΡΠΈΠΊΠ° Π±Π»Π°Π³ΠΎΠ΄Π°ΡΡ ΠΈΠ·Π½ΠΎΡΠΎΡΡΠΎΠΉΠΊΠΎΠΌΡ ΡΠ»ΠΎΡ. ΠΡ ΠΌΠΎΠΆΠ΅ΡΠ΅ ΠΎΡΡΠ»ΠΈΡΠΎΠ²Π°ΡΡ ΠΈ ΠΎΡΠΏΠΎΠ»ΠΈΡΠΎΠ²Π°ΡΡ ΠΏΠ°ΡΠΊΠ΅Ρ Π½Π΅ΡΠΊΠΎΠ»ΡΠΊΠΎ ΡΠ°Π·, Π΅ΡΠ»ΠΈ Ρ ΠΎΡΠΈΡΠ΅ ΠΈΠ·ΠΌΠ΅Π½ΠΈΡΡ Π²Π½Π΅ΡΠ½ΠΈΠΉ Π²ΠΈΠ΄ ΡΠ²ΠΎΠ΅Π³ΠΎ Π΄ΠΎΠΌΠ°. ΠΠ°ΠΌΠΈΠ½ΠΈΡΠΎΠ²Π°Π½Π½ΡΠ΅ ΠΏΠΎΠ»Ρ ΠΈΠ· ΠΈΠ½ΠΆΠ΅Π½Π΅ΡΠ½ΠΎΠΉ Π΄ΡΠ΅Π²Π΅ΡΠΈΠ½Ρ ΠΌΠΎΠΆΠ½ΠΎ ΠΏΠ΅ΡΠ΅ΠΊΡΠ°ΡΠΈΠ²Π°ΡΡ ΠΎΠ΄ΠΈΠ½ ΠΈΠ»ΠΈ Π΄Π²Π° ΡΠ°Π·Π°, Π½ΠΎ Π΅ΡΠ»ΠΈ ΡΡΠΎ ΠΏΡΠΎΠΈΠ·ΠΎΠΉΠ΄Π΅Ρ ΡΠ°ΡΠ΅, Π·Π°ΡΠΈΡΠ½ΡΠΉ ΡΠ»ΠΎΠΉ ΡΡΠΈΡΠ°Π΅ΡΡΡ.
Π‘ΡΠ°Π²Π½Π΅Π½ΠΈΠ΅ Π²ΠΈΠ½ΠΈΠ»ΠΎΠ²ΡΡ ΠΏΠΎΠ»ΠΎΠ²ΠΈ Π»Π°ΠΌΠΈΠ½Π°ΡΠ°
ΠΠΎΠ» ΠΈΠ· Π²ΠΈΠ½ΠΈΠ»ΠΎΠ²ΡΡ
Π΄ΠΎΡΠΎΠΊ ΡΠΊΠ»Π°Π΄ΡΠ²Π°Π΅ΡΡΡ ΠΏΡΡΠ΅ΠΌ ΡΠΊΡΠ΅ΠΏΠ»Π΅Π½ΠΈΡ ΠΊΠ°ΠΆΠ΄ΠΎΠΉ ΡΠ°ΡΡΠΈ Π²ΠΌΠ΅ΡΡΠ΅, ΡΡΠΎ Π°Π½Π°Π»ΠΎΠ³ΠΈΡΠ½ΠΎ Π»Π°ΠΌΠΈΠ½Π°ΡΡ.Π ΠΎΡΠΊΠΎΡΠ½Π°Ρ Π²ΠΈΠ½ΠΈΠ»ΠΎΠ²Π°Ρ ΠΏΠ»Π°Π½ΠΊΠ° ΡΠΎΠ»ΡΠ΅ Π»Π°ΠΌΠΈΠ½Π°ΡΠ°, ΡΡΠΎ ΠΏΠΎΠ·Π²ΠΎΠ»ΡΠ΅Ρ Π½Π°Π½ΠΎΡΠΈΡΡ Π±ΠΎΠ»Π΅Π΅ Π³Π»ΡΠ±ΠΎΠΊΠΎΠ΅ ΡΠΈΡΠ½Π΅Π½ΠΈΠ΅ Π΄Π»Ρ ΡΠΎΠ·Π΄Π°Π½ΠΈΡ Π°ΡΡΠ΅Π½ΡΠΈΡΠ½ΠΎΠ³ΠΎ Π²ΠΈΠ΄Π° Π΄Π΅ΡΠ΅Π²Π°. Π£ Π»Π°ΠΌΠΈΠ½Π°ΡΠ° Π΅ΡΡΡ Π΄Π΅ΡΠ΅Π²ΡΠ½Π½Π°Ρ ΡΠ΅ΡΠ΄ΡΠ΅Π²ΠΈΠ½Π°, ΠΊΠΎΡΠΎΡΠ°Ρ Π΄Π΅Π»Π°Π΅Ρ Π΅Π³ΠΎ ΡΡΠ·Π²ΠΈΠΌΡΠΌ Π΄Π»Ρ ΠΏΠΎΠ²ΡΠ΅ΠΆΠ΄Π΅Π½ΠΈΡ Π²ΠΎΠ΄ΠΎΠΉ, Π² ΠΎΡΠ»ΠΈΡΠΈΠ΅ ΠΎΡ Π²ΠΈΠ½ΠΈΠ»ΠΎΠ²ΠΎΠΉ Π΄ΠΎΡΠΊΠΈ.
ΠΠΎΠ³Π΄Π° Π΄Π΅Π»ΠΎ Π΄ΠΎΡ
ΠΎΠ΄ΠΈΡ Π΄ΠΎ Π²ΠΈΠ½ΠΈΠ»ΠΎΠ²ΠΎΠΉ Π΄ΠΎΡΠΊΠΈ ΠΏΠΎ ΡΡΠ°Π²Π½Π΅Π½ΠΈΡ Ρ Π»Π°ΠΌΠΈΠ½Π°ΡΠΎΠΌ, Π²ΠΈΠ½ΠΈΠ» ΡΠ²Π»ΡΠ΅ΡΡΡ Π»ΡΡΡΠΈΠΌ Π²Π°ΡΠΈΠ°Π½ΡΠΎΠΌ Π΄Π»Ρ Π²Π°Π½Π½ΡΡ
ΠΊΠΎΠΌΠ½Π°Ρ ΠΈ ΠΊΡΡ
ΠΎΠ½Ρ. Π Π°Π·Π½ΠΈΡΠ° ΠΌΠ΅ΠΆΠ΄Ρ Π»Π°ΠΌΠΈΠ½Π°ΡΠΎΠΌ ΠΈ Π²ΠΈΠ½ΠΈΠ»ΠΎΠΌΒ Π² ΠΎΡΠ½ΠΎΠ²Π½ΠΎΠΌ ΡΠ²ΡΠ·Π°Π½Π° Ρ ΡΠΎΠ»ΡΠΈΠ½ΠΎΠΉ ΠΈ Π²ΠΎΠ΄ΠΎΠ½Π΅ΠΏΡΠΎΠ½ΠΈΡΠ°Π΅ΠΌΠΎΡΡΡΡ ΠΊΠ°ΠΆΠ΄ΠΎΠ³ΠΎ ΠΈΠ· Π½ΠΈΡ
.
ΠΠ½ΠΆΠ΅Π½Π΅ΡΠ½Π°Ρ ΡΠ²Π΅ΡΠ΄Π°Ρ Π΄ΡΠ΅Π²Π΅ΡΠΈΠ½Π° ΠΏΡΠΎΡΠΈΠ² Π»Π°ΠΌΠΈΠ½Π°ΡΠ°
ΠΠ½ΠΆΠ΅Π½Π΅ΡΠ½Π°Ρ ΡΠ²Π΅ΡΠ΄Π°Ρ Π΄ΡΠ΅Π²Π΅ΡΠΈΠ½Π° ΠΈΠΌΠ΅Π΅Ρ ΡΠ²Π΅ΡΠ΄ΡΠΉ Π²Π΅ΡΡ Π½ΠΈΠΉ ΡΠ»ΠΎΠΉ ΠΈΠ· Π½Π°ΡΡΡΠ°Π»ΡΠ½ΠΎΠ³ΠΎ Π΄Π΅ΡΠ΅Π²Π°, Π² ΡΠΎ Π²ΡΠ΅ΠΌΡ ΠΊΠ°ΠΊ Π»Π°ΠΌΠΈΠ½Π°Ρ ΠΈΡΠΏΠΎΠ»ΡΠ·ΡΠ΅Ρ ΠΏΠ΅ΡΠ°ΡΠ½ΡΠΉ ΡΠΈΠ½ΡΠ΅ΡΠΈΡΠ΅ΡΠΊΠΈΠΉ Π²Π΅ΡΡ Π½ΠΈΠΉ ΡΠ»ΠΎΠΉ Π΄Π»Ρ Π²ΠΎΡΡΠΎΠ·Π΄Π°Π½ΠΈΡ Π²Π½Π΅ΡΠ½Π΅Π³ΠΎ Π²ΠΈΠ΄Π° Π½Π°ΡΡΡΠ°Π»ΡΠ½ΠΎΠ³ΠΎ Π΄Π΅ΡΠ΅Π²Π°.Π ΠΎΡΠ½ΠΎΠ²Π° ΠΏΠ°ΡΠΊΠ΅ΡΠ½ΠΎΠΉ Π΄ΠΎΡΠΊΠΈ, ΠΈ Π»Π°ΠΌΠΈΠ½Π°Ρ ΠΈΠ·Π³ΠΎΡΠΎΠ²Π»Π΅Π½Ρ ΠΈΠ· ΡΠΈΠ½ΡΠ΅ΡΠΈΡΠ΅ΡΠΊΠΈΡ ΠΌΠ°ΡΠ΅ΡΠΈΠ°Π»ΠΎΠ². ΠΠ½ΠΆΠ΅Π½Π΅ΡΠ½Π°Ρ Π΄ΡΠ΅Π²Π΅ΡΠΈΠ½Π° ΡΠΎΠ»ΡΠ΅ Π»Π°ΠΌΠΈΠ½Π°ΡΠ°, ΠΏΠΎΡΡΠΎΠΌΡ ΡΡΠΎ Ρ ΠΎΡΠΎΡΠΈΠΉ Π²Π°ΡΠΈΠ°Π½Ρ Π΄Π»Ρ ΠΏΠΎΠΌΠ΅ΡΠ΅Π½ΠΈΠΉ Ρ ΠΈΠ½ΡΠ΅Π½ΡΠΈΠ²Π½ΡΠΌ Π΄Π²ΠΈΠΆΠ΅Π½ΠΈΠ΅ΠΌ, Π³Π΄Π΅ ΡΡΠΌ ΡΠ²Π»ΡΠ΅ΡΡΡ ΠΏΡΠΎΠ±Π»Π΅ΠΌΠΎΠΉ. ΠΠ°ΠΌΠΈΠ½Π°Ρ Π΄Π΅ΡΠ΅Π²Π»Π΅, ΡΠ΅ΠΌ ΠΈΠ½ΠΆΠ΅Π½Π΅ΡΠ½Π°Ρ Π΄ΡΠ΅Π²Π΅ΡΠΈΠ½Π°, ΡΡΠΎ ΠΎΠ·Π½Π°ΡΠ°Π΅Ρ, ΡΡΠΎ ΠΎΠ½ Π»ΡΡΡΠ΅ ΠΏΠΎΠ΄Ρ ΠΎΠ΄ΠΈΡ Π΄Π»Ρ ΠΏΡΠΎΠ΅ΠΊΡΠΎΠ², Π³Π΄Π΅ ΡΡΠΎΠΈΠΌΠΎΡΡΡ ΠΈΠΌΠ΅Π΅Ρ Π·Π½Π°ΡΠ΅Π½ΠΈΠ΅.
ΠΠ°ΠΊ ΡΠΈΡΡΠΈΡΡ Π΄Π΅ΡΠ΅Π²ΡΠ½Π½ΡΠ΅ ΠΏΠΎΠ»Ρ ΠΈΠ· Π»Π°ΠΌΠΈΠ½Π°ΡΠ°
ΠΠ°ΠΌΠΈΠ½ΠΈΡΠΎΠ²Π°Π½Π½ΡΠ΅ ΠΏΠΎΠ»Ρ Π»Π΅Π³ΠΊΠΎ ΡΠΎΠ΄Π΅ΡΠΆΠ°ΡΡ Π² ΡΠΈΡΡΠΎΡΠ΅, ΠΎΡΠΎΠ±Π΅Π½Π½ΠΎ ΠΏΡΠΈ ΡΠ΅Π³ΡΠ»ΡΡΠ½ΠΎΠΌ ΡΡ
ΠΎΠ΄Π΅. ΠΠΎΠ³Π΄Π° Π²Ρ ΠΈΡΠ΅ΡΠ΅, ΠΊΠ°ΠΊ ΡΠΈΡΡΠΈΡΡ Π»Π°ΠΌΠΈΠ½ΠΈΡΠΎΠ²Π°Π½Π½ΡΠ΅ ΠΏΠΎΠ»Ρ.
Π½ΠΈΠΊΠΎΠ³Π΄Π° Π½Π΅ ΠΈΡΠΏΠΎΠ»ΡΠ·ΡΠΉΡΠ΅ ΠΏΠ°ΡΠΎΠΎΡΠΈΡΡΠΈΡΠ΅Π»ΠΈ ΠΈΠ»ΠΈ Π²Π»Π°ΠΆΠ½ΡΠ΅ ΡΠ²Π°Π±ΡΡ Π΄Π»Ρ ΠΎΡΠΈΡΡΠΊΠΈ Π»Π°ΠΌΠΈΠ½Π°ΡΠ°, ΡΠ°ΠΊ ΠΊΠ°ΠΊ ΡΡΠΎ ΠΌΠΎΠΆΠ΅Ρ ΠΏΡΠΈΠ²Π΅ΡΡΠΈ ΠΊ Π½Π΅ΠΎΠ±ΡΠ°ΡΠΈΠΌΠΎΠΌΡ ΠΏΠΎΠ²ΡΠ΅ΠΆΠ΄Π΅Π½ΠΈΡ ΠΏΠΎΠ²Π΅ΡΡ
Π½ΠΎΡΡΠ½ΠΎΠ³ΠΎ ΡΠ»ΠΎΡ. ΠΡΠ΅Π³Π΄Π° ΠΏΡΠΎΠΌΠΎΠΊΠ°ΠΉΡΠ΅ ΡΠ°Π·Π»ΠΈΠ²Ρ, ΠΊΠ°ΠΊ ΡΠΎΠ»ΡΠΊΠΎ ΠΎΠ½ΠΈ ΠΏΠΎΡΠ²Π»ΡΡΡΡΡ, ΠΈ Π½ΠΈΠΊΠΎΠ³Π΄Π° Π½Π΅ Π΄ΠΎΠΏΡΡΠΊΠ°ΠΉΡΠ΅ ΠΏΠΎΠΏΠ°Π΄Π°Π½ΠΈΡ ΠΆΠΈΠ΄ΠΊΠΎΡΡΠΈ Π½Π° ΠΏΠΎΠ». Π§Π°ΡΡΠΎ ΠΏΠΎΠ΄ΠΌΠ΅ΡΠ°ΠΉΡΠ΅, Π²ΡΡΠΈΡΠ°ΠΉΡΠ΅ ΠΏΡΠ»Ρ ΠΈΠ»ΠΈ ΠΏΡΠ»Π΅ΡΠΎΡΡΡΠ΅ Π»Π°ΠΌΠΈΠ½ΠΈΡΠΎΠ²Π°Π½Π½ΡΠ΅ ΠΏΠΎΠ»Ρ, ΠΈΡΠΏΠΎΠ»ΡΠ·ΡΡ Π½Π°ΡΠ°Π΄ΠΊΡ Π΄Π»Ρ ΡΠ²Π΅ΡΠ΄ΡΡ
ΠΏΠΎΠ»ΠΎΠ² Π½Π° ΠΏΡΠ»Π΅ΡΠΎΡΠ΅. ΠΠ΅ ΠΈΡΠΏΠΎΠ»ΡΠ·ΡΠΉΡΠ΅ Π½Π°ΡΠ°Π΄ΠΊΡ Π΄Π»Ρ ΠΊΠΎΠ»ΠΎΡΡΡΠΊΠΈ Π½Π° Π»Π°ΠΌΠΈΠ½Π°ΡΠ½ΡΡ
ΠΏΠΎΠ»Π°Ρ
, ΠΈΠ½Π°ΡΠ΅ ΠΎΠ½Π° ΠΌΠΎΠΆΠ΅Ρ ΠΏΠΎΠ²ΡΠ΅Π΄ΠΈΡΡ ΠΎΡΠ΄Π΅Π»ΠΊΡ ΠΈ ΠΎΡΡΠ°Π²ΠΈΡΡ ΡΠ»Π΅Π΄Ρ. ΠΡ ΡΠ°ΠΊΠΆΠ΅ ΠΌΠΎΠΆΠ΅ΡΠ΅ ΠΈΡΠΏΠΎΠ»ΡΠ·ΠΎΠ²Π°ΡΡ ΡΠΏΠ΅ΡΠΈΠ°Π»ΡΠ½ΠΎΠ΅ ΡΠΈΡΡΡΡΠ΅Π΅ ΡΡΠ΅Π΄ΡΡΠ²ΠΎ Π΄Π»Ρ Π»Π°ΠΌΠΈΠ½Π°ΡΠ°, Π½ΠΎ ΡΠ±Π΅Π΄ΠΈΡΠ΅ΡΡ, ΡΡΠΎ ΠΎΠ½ΠΎ Π±Π΅Π·ΠΎΠΏΠ°ΡΠ½ΠΎ Π΄Π»Ρ Π²Π°ΡΠ΅Π³ΠΎ Π»Π°ΠΌΠΈΠ½Π°ΡΠ°.ΠΠΈΠΊΠΎΠ³Π΄Π° Π½Π΅ ΠΈΡΠΏΠΎΠ»ΡΠ·ΡΠΉΡΠ΅ ΠΌΠΎΡΡΠ΅Π΅ ΡΡΠ΅Π΄ΡΡΠ²ΠΎ Π½Π° ΠΎΡΠ½ΠΎΠ²Π΅ ΠΌΠ°ΡΠ»ΡΠ½ΠΎΠ³ΠΎ ΠΌΡΠ»Π° ΠΈ Π½Π΅ ΠΌΠΎΠΉΡΠ΅ ΠΏΠΎΠ» Π²Π»Π°ΠΆΠ½ΠΎΠΉ ΡΠ²Π°Π±ΡΠΎΠΉ, ΡΠ°ΠΊ ΠΊΠ°ΠΊ ΡΡΠΎ ΠΌΠΎΠΆΠ΅Ρ ΠΏΡΠΈΠ²Π΅ΡΡΠΈ ΠΊ Π²Π·Π΄ΡΡΠΈΡ, Π΄Π΅ΡΠΎΡΠΌΠ°ΡΠΈΠΈ ΠΈΠ»ΠΈ ΡΠ°ΡΡΠ»ΠΎΠ΅Π½ΠΈΡ ΠΏΠΎΠ»ΠΎΠ² Π² ΠΌΠ΅ΡΡΠ°Ρ
ΡΡΡΠΊΠΎΠ². ΠΡΠΎ ΡΠ°ΠΊΠΆΠ΅ ΠΌΠΎΠΆΠ΅Ρ ΠΏΡΠΈΠ²Π΅ΡΡΠΈ ΠΊ Π°Π½Π½ΡΠ»ΠΈΡΠΎΠ²Π°Π½ΠΈΡ Π³Π°ΡΠ°Π½ΡΠΈΠΈ Π² Π·Π°Π²ΠΈΡΠΈΠΌΠΎΡΡΠΈ ΠΎΡ Π½Π΅ΠΊΠΎΡΠΎΡΡΡ
ΠΏΡΠΎΠΈΠ·Π²ΠΎΠ΄ΠΈΡΠ΅Π»Π΅ΠΉ. ΠΠ΅ ΠΈΡΠΏΠΎΠ»ΡΠ·ΡΠΉΡΠ΅ Π°Π±ΡΠ°Π·ΠΈΠ²Π½ΡΠ΅ ΡΠΈΡΡΡΡΠΈΠ΅ ΡΡΠ΅Π΄ΡΡΠ²Π° ΠΈΠ»ΠΈ ΡΡΠ°Π»ΡΠ½ΡΡ Π²Π°ΡΡ Π΄Π»Ρ ΡΠΈΡΡΠΊΠΈ Π»Π°ΠΌΠΈΠ½ΠΈΡΠΎΠ²Π°Π½Π½ΡΡ
ΠΏΠΎΠ»ΠΎΠ².
youtube.com/embed/5u73IGX5TcU?feature=oembed» frameborder=»0″ allow=»accelerometer; autoplay; clipboard-write; encrypted-media; gyroscope; picture-in-picture» allowfullscreen=»»/>
ΠΡΡΡΠΈΠΉ ΡΠΏΠΎΡΠΎΠ± ΠΌΡΡΡ Π»Π°ΠΌΠΈΠ½ΠΈΡΠΎΠ²Π°Π½Π½ΡΠ΅ ΠΏΠΎΠ»ΡΒ β ΡΡΠΎ ΡΡΠ΅Π΄ΡΡΠ²ΠΎ Π΄Π»Ρ ΡΠΈΡΡΠΊΠΈ Π»Π°ΠΌΠΈΠ½Π°ΡΠ° ΡΠ²ΠΎΠΈΠΌΠΈ ΡΡΠΊΠ°ΠΌΠΈ ΠΈ ΡΠ²Π°Π±ΡΠ° Π΄Π»Ρ Π»Π°ΠΌΠΈΠ½Π°ΡΠ°. Π§ΡΠΎΠ±Ρ ΡΠ΄Π΅Π»Π°ΡΡ ΡΠΈΡΡΡΡΠ΅Π΅ ΡΡΠ΅Π΄ΡΡΠ²ΠΎ, Π²Π°ΠΌ ΠΏΠΎΠ½Π°Π΄ΠΎΠ±ΡΡΡΡ ΡΡΠΈ ΠΏΡΠΎΡΡΡΡ ΠΈΠ½Π³ΡΠ΅Π΄ΠΈΠ΅Π½ΡΠ°: Π±Π΅Π»ΡΠΉ ΡΠΊΡΡΡ, ΠΌΠ΅Π΄ΠΈΡΠΈΠ½ΡΠΊΠΈΠΉ ΡΠΏΠΈΡΡ ΠΈ ΡΠΈΠ»ΡΡΡΠΎΠ²Π°Π½Π½Π°Ρ Π²ΠΎΠ΄Π°.Π‘ΠΌΠ΅ΡΠ°ΠΉΡΠ΅ Β½ ΡΡΠ°ΠΊΠ°Π½Π° Π±Π΅Π»ΠΎΠ³ΠΎ ΡΠΊΡΡΡΠ° ΠΈ Β½ ΡΡΠ°ΠΊΠ°Π½Π° ΠΌΠ΅Π΄ΠΈΡΠΈΠ½ΡΠΊΠΎΠ³ΠΎ ΡΠΏΠΈΡΡΠ° Ρ Β½ ΡΡΠ°ΠΊΠ°Π½Π° ΡΠΈΠ»ΡΡΡΠΎΠ²Π°Π½Π½ΠΎΠΉ Π²ΠΎΠ΄Ρ. Π‘ΠΎΠ΅Π΄ΠΈΠ½ΠΈΡΠ΅ ΠΈΠ½Π³ΡΠ΅Π΄ΠΈΠ΅Π½ΡΡ Π² ΠΏΡΠ»ΡΠ²Π΅ΡΠΈΠ·Π°ΡΠΎΡΠ΅ ΠΈ ΡΡΠ°ΡΠ΅Π»ΡΠ½ΠΎ Π²ΡΠ΅ ΠΏΠ΅ΡΠ΅ΠΌΠ΅ΡΠ°ΠΉΡΠ΅. ΠΡΠ»ΠΈ Π²Ρ ΠΏΡΠ΅Π΄ΠΏΠΎΡΠΈΡΠ°Π΅ΡΠ΅ Π°ΡΠΎΠΌΠ°ΡΠΈΠ·ΠΈΡΠΎΠ²Π°Π½Π½ΡΠ΅ ΡΠΈΡΡΡΡΠΈΠ΅ ΡΡΠ΅Π΄ΡΡΠ²Π°, Π²Ρ ΡΠ°ΠΊΠΆΠ΅ ΠΌΠΎΠΆΠ΅ΡΠ΅ Π΄ΠΎΠ±Π°Π²ΠΈΡΡ 3-5 ΠΊΠ°ΠΏΠ΅Π»Ρ Π²Π°ΡΠ΅Π³ΠΎ Π»ΡΠ±ΠΈΠΌΠΎΠ³ΠΎ ΡΡΠΈΡΠ½ΠΎΠ³ΠΎ ΠΌΠ°ΡΠ»Π°. Π Π°ΡΠΏΡΠ»ΠΈΡΠ΅ ΡΠΌΠ΅ΡΡ Π½Π° ΠΏΠΎΠ» ΠΈ ΡΡΠ°Π·Ρ ΠΆΠ΅ ΠΏΡΠΎΡΡΠΈΡΠ΅ Π΅Π΅ ΠΌΡΠ³ΠΊΠΎΠΉ ΡΡΡ ΠΎΠΉ ΡΠ²Π°Π±ΡΠΎΠΉ. ΠΠ΅ ΠΏΠΎΠ·Π²ΠΎΠ»ΡΠΉΡΠ΅ ΡΠ°ΡΡΠ²ΠΎΡΡ ΡΠΊΠ°ΠΏΠ»ΠΈΠ²Π°ΡΡΡΡ Π½Π° Π²Π°ΡΠΈΡ ΠΏΠΎΠ»Π°Ρ . Π‘ΠΎΡ ΡΠ°Π½ΠΈΡΠ΅ ΡΠΈΡΡΡΡΠ΅Π΅ ΡΡΠ΅Π΄ΡΡΠ²ΠΎ ΠΈ ΠΈΡΠΏΠΎΠ»ΡΠ·ΡΠΉΡΠ΅ Π΅Π³ΠΎ Π² ΡΠ΅ΡΠ΅Π½ΠΈΠ΅ ΠΎΠ΄Π½ΠΎΠ³ΠΎ ΠΌΠ΅ΡΡΡΠ° ΠΈΠ»ΠΈ ΡΠ΄Π΅Π»Π°ΠΉΡΠ΅ Π½ΠΎΠ²ΡΡ ΠΏΠ°ΡΡΠΈΡ ΠΏΠΎ ΠΈΡΡΠ΅ΡΠ΅Π½ΠΈΠΈ ΠΎΠ΄Π½ΠΎΠ³ΠΎ ΠΌΠ΅ΡΡΡΠ°.
- ΠΠ°ΠΊ ΡΠ΄Π΅Π»Π°ΡΡ Π»Π°ΠΌΠΈΠ½ΠΈΡΠΎΠ²Π°Π½Π½ΡΠ΅ ΠΏΠΎΠ»Ρ Π±Π»Π΅ΡΡΡΡΠΈΠΌΠΈ:Β Π§ΡΠΎΠ±Ρ Π½Π°ΡΠ»Π°ΠΆΠ΄Π°ΡΡΡΡ Π±Π»Π΅ΡΡΡΡΠΈΠΌΠΈ Π»Π°ΠΌΠΈΠ½ΠΈΡΠΎΠ²Π°Π½Π½ΡΠΌΠΈ ΠΏΠΎΠ»Π°ΠΌΠΈ, Π΄Π΅ΡΠΆΠΈΡΠ΅ ΠΏΠΎΠ²Π΅ΡΡ
Π½ΠΎΡΡΡ ΡΠΈΡΡΠΎΠΉ ΠΈ ΡΠ²ΠΎΠ±ΠΎΠ΄Π½ΠΎΠΉ ΠΎΡ Π³ΡΡΠ·ΠΈ ΠΈ ΠΌΡΡΠΎΡΠ°.
ΠΡΠΏΠΎΠ»ΡΠ·ΡΠΉΡΠ΅ ΡΠΈΡΡΡΡΠ΅Π΅ ΡΡΠ΅Π΄ΡΡΠ²ΠΎ Π΄Π»Ρ Π»Π°ΠΌΠΈΠ½Π°ΡΠ° ΡΠ²ΠΎΠΈΠΌΠΈ ΡΡΠΊΠ°ΠΌΠΈ ΡΠ°Π· Π² Π½Π΅Π΄Π΅Π»Ρ ΠΈ ΠΏΠΎΠ»ΠΈΡΡΠΉΡΠ΅ ΠΏΠΎΠ» ΠΊΡΡΠ³ΠΎΠ²ΡΠΌΠΈ Π΄Π²ΠΈΠΆΠ΅Π½ΠΈΡΠΌΠΈ Ρ ΠΏΠΎΠΌΠΎΡΡΡ ΠΌΡΠ³ΠΊΠΎΠΉ ΡΠΊΠ°Π½ΠΈ ΠΈΠ· ΠΌΠΈΠΊΡΠΎΡΠΈΠ±ΡΡ ΠΈΠ»ΠΈ Π»ΡΡΡΠ΅ΠΉ ΡΠ²Π°Π±ΡΡ Π΄Π»Ρ Π»Π°ΠΌΠΈΠ½Π°ΡΠ°. ΠΠ΅ ΠΈΡΠΏΠΎΠ»ΡΠ·ΡΠΉΡΠ΅ ΠΏΠΎΠ»ΠΈΡΠΎΠ»Ρ ΠΈΠ»ΠΈ Π²ΠΎΡΠΊ, ΠΈΠ½Π°ΡΠ΅ ΠΎΠ½ΠΈ ΠΌΠΎΠ³ΡΡ ΠΎΡΡΠ°Π²ΠΈΡΡ ΠΏΠΎΡΠ»Π΅ ΡΠ΅Π±Ρ Π»ΠΈΠΏΠΊΠΈΠ΅ ΠΏΠ»Π΅Π½ΠΊΠΈ. - ΠΠΎΠΆΠ½ΠΎ Π»ΠΈ ΠΌΡΡΡ Π»Π°ΠΌΠΈΠ½Π°Ρ? ΠΡΡΡΠ°Ρ ΡΠ²Π°Π±ΡΠ° Π΄Π»Ρ Π»Π°ΠΌΠΈΠ½ΠΈΡΠΎΠ²Π°Π½Π½ΡΡ ΠΏΠΎΠ»ΠΎΠ²Β ΠΈΡΠΏΠΎΠ»ΡΠ·ΡΠ΅Ρ Π½Π°ΡΠ°Π΄ΠΊΡ ΠΈΠ· ΠΌΡΠ³ΠΊΠΎΠΉ ΠΌΠΈΠΊΡΠΎΡΠΈΠ±ΡΡ ΠΈΠ»ΠΈ Π½Π°ΡΠ°Π΄ΠΊΠΈ Π΄Π»Ρ ΡΠ²Π°Π±ΡΡ.ΠΠ΅ ΠΈΡΠΏΠΎΠ»ΡΠ·ΡΠΉΡΠ΅ Π°Π±ΡΠ°Π·ΠΈΠ²Π½ΡΠ΅ ΡΠ²Π°Π±ΡΡ Π½Π° Π»Π°ΠΌΠΈΠ½Π°ΡΠ΅ ΠΈ Π²ΡΠ΅Π³Π΄Π° ΡΡΠ°ΡΠ΅Π»ΡΠ½ΠΎ Π²ΡΡΠΈΡΠ°ΠΉΡΠ΅ ΠΈΡ , ΡΡΠΎΠ±Ρ Π½Π° ΠΏΠΎΠ²Π΅ΡΡ Π½ΠΎΡΡΡ Π½Π΅ ΠΏΠΎΠΏΠ°Π»Π° ΡΡΠΎΡΡΠ°Ρ Π²ΠΎΠ΄Π°.
- ΠΠΎΠΆΠ½ΠΎ Π»ΠΈ ΡΠΈΡΡΠΈΡΡ Π»Π°ΠΌΠΈΠ½Π°Ρ ΠΏΠ°ΡΠΎΠΌ? ΠΠ΅ ΠΈΡΠΏΠΎΠ»ΡΠ·ΡΠΉΡΠ΅ ΠΏΠ°ΡΠΎΠ²ΡΡ ΡΠ²Π°Π±ΡΡ ΠΈΠ»ΠΈ ΠΏΠ°ΡΠΎΠΎΡΠΈΡΡΠΈΡΠ΅Π»Ρ Π΄Π»Ρ ΡΠΈΡΡΠΊΠΈ Π»Π°ΠΌΠΈΠ½Π°ΡΠ°. Π’Π΅ΠΏΠ»ΠΎ ΠΈ Π²Π»Π°Π³Π°, Π²ΡΠ΄Π΅Π»ΡΠ΅ΠΌΡΠ΅ ΡΡΠΈΠΌΠΈ ΡΠΈΡΡΡΡΠΈΠΌΠΈ ΡΡΠ΅Π΄ΡΡΠ²Π°ΠΌΠΈ, Π·Π°ΡΡΠ°Π²ΡΡ Π²Π°ΡΠΈ ΠΏΠΎΠ»Ρ Π΄Π΅ΡΠΎΡΠΌΠΈΡΠΎΠ²Π°ΡΡΡΡ, Π΄Π΅ΡΠΎΡΠΌΠΈΡΠΎΠ²Π°ΡΡΡΡ ΠΈ, Π²ΠΎΠ·ΠΌΠΎΠΆΠ½ΠΎ, ΠΎΡΡΠΎΠ΅Π΄ΠΈΠ½ΠΈΡΡΡΡ ΠΎΡ ΠΎΡΠ½ΠΎΠ²Π°Π½ΠΈΡ. Π‘ΠΎΡΠ΅ΡΠ°Π½ΠΈΠ΅ Π΄Π°Π²Π»Π΅Π½ΠΈΡ ΠΈ Π²Π»Π°Π³ΠΈ ΠΏΡΠΈΠ²Π΅Π΄Π΅Ρ ΠΊ ΡΠΎΠΌΡ, ΡΡΠΎ Π²ΠΎΠ΄Π° ΠΏΠΎΠΏΠ°Π΄Π΅Ρ ΠΌΠ΅ΠΆΠ΄Ρ ΡΠ²Π°ΠΌΠΈ Π²Π°ΡΠ΅ΠΉ Π»Π°ΠΌΠΈΠ½ΠΈΡΠΎΠ²Π°Π½Π½ΠΎΠΉ ΠΏΠ»ΠΈΡΠΊΠΈ ΠΈΠ»ΠΈ Π΄ΠΎΡΠΎΠΊ, ΡΡΠΎ ΠΏΡΠΈΠ²Π΅Π΄Π΅Ρ ΠΊ ΡΠ΅ΡΡΠ΅Π·Π½ΡΠΌ ΠΏΠΎΠ²ΡΠ΅ΠΆΠ΄Π΅Π½ΠΈΡΠΌ.
ΠΡ ΠΌΠΎΠΆΠ΅ΡΠ΅ Π»Π°ΠΌΠΈΠ½ΠΈΡΠΎΠ²Π°ΡΡ ΠΏΠΎΠ», Π½ΠΎ ΡΠ½Π°ΡΠ°Π»Π° Π²Π°ΠΌ Π½ΡΠΆΠ½ΠΎ ΠΎΡΡΠ»ΠΈΡΠΎΠ²Π°ΡΡ Π²ΡΡ ΠΏΠΎΠ²Π΅ΡΡ
Π½ΠΎΡΡΡ, ΡΡΠΎΠ±Ρ ΠΏΠΎΠ΄Π³ΠΎΡΠΎΠ²ΠΈΡΡ ΡΡΠ°ΡΡΠΎΠΊ.
ΠΠΎΡΠ»Π΅ ΡΠ»ΠΈΡΠΎΠ²ΠΊΠΈ Π²Π΅ΡΡ
Π½Π΅Π³ΠΎ ΡΠ»ΠΎΡ ΠΏΡΠΎΠΏΡΠ»Π΅ΡΠΎΡΡΡΠ΅ ΠΌΡΡΠΎΡ ΠΈ Π½Π°Π½Π΅ΡΠΈΡΠ΅ ΡΠ»ΠΎΠΉ Π³ΡΡΠ½ΡΠΎΠ²ΠΊΠΈ. ΠΠ°ΠΉΡΠ΅ Π³ΡΡΠ½ΡΠΎΠ²ΠΊΠ΅ Π²ΡΡΠΎΡ
Π½ΡΡΡ Π² ΡΠ΅ΡΠ΅Π½ΠΈΠ΅ ΡΡΡΠΎΠΊ, ΠΏΡΠ΅ΠΆΠ΄Π΅ ΡΠ΅ΠΌ Π½Π°Π½ΠΎΡΠΈΡΡ Π½Π° ΠΏΠΎΠ» ΡΠ»ΠΎΠΉ ΠΊΡΠ°ΡΠΊΠΈ. Π£Π±Π΅Π΄ΠΈΡΠ΅ΡΡ, ΡΡΠΎ Π²ΡΠ±ΡΠ°Π½Π½Π°Ρ Π²Π°ΠΌΠΈ ΠΊΡΠ°ΡΠΊΠ° Π΄ΠΎΡΡΠ°ΡΠΎΡΠ½ΠΎ ΠΏΡΠΎΡΠ½Π°Ρ, ΡΡΠΎΠ±Ρ Π²ΡΠ΄Π΅ΡΠΆΠ°ΡΡ ΠΏΠ΅ΡΠ΅Ρ
ΠΎΠ΄Π½ΠΎΠ΅ Π΄Π²ΠΈΠΆΠ΅Π½ΠΈΠ΅ ΠΈ ΠΌΠ΅Π±Π΅Π»Ρ, ΡΡΠΎΠ±Ρ ΠΎΠ½Π° ΠΎΡΡΠ°Π²Π°Π»Π°ΡΡ ΠΊΡΠ°ΡΠΈΠ²ΠΎΠΉ Π΄ΠΎΠ»Π³ΠΈΠ΅ Π³ΠΎΠ΄Ρ.
ΠΡΠ»ΠΈ Ρ Π²Π°Ρ Π΅ΡΡΡ Π»Π°ΠΌΠΈΠ½Π°Ρ ΠΈΠ· ΠΈΠ½ΠΆΠ΅Π½Π΅ΡΠ½ΠΎΠΉ Π΄ΡΠ΅Π²Π΅ΡΠΈΠ½Ρ, Π²Ρ ΠΌΠΎΠΆΠ΅ΡΠ΅ Π²ΡΠΏΠΎΠ»Π½ΠΈΡΡ ΠΏΠΎΠ²ΡΠΎΡΠ½ΡΡ ΠΎΡΠ΄Π΅Π»ΠΊΡ Π»Π°ΠΌΠΈΠ½ΠΈΡΠΎΠ²Π°Π½Π½ΠΎΠ³ΠΎ ΠΏΠΎΠ»Π°.ΠΠ°Π½Π΅ΡΠΈΡΠ΅ ΡΡΠ΅Π΄ΡΡΠ²ΠΎ Π΄Π»Ρ ΡΠ½ΡΡΠΈΡ ΠΏΠΎΠ»Π° Π½Π° ΠΏΠΎΠ» Π² ΡΠΎΠΎΡΠ²Π΅ΡΡΡΠ²ΠΈΠΈ Ρ ΠΈΠ½ΡΡΡΡΠΊΡΠΈΡΠΌΠΈ ΠΏΡΠΎΠΈΠ·Π²ΠΎΠ΄ΠΈΡΠ΅Π»Ρ. Π£Π±Π΅Π΄ΠΈΡΠ΅ΡΡ, ΡΡΠΎ Π²Ρ ΠΈΡΠΏΠΎΠ»ΡΠ·ΡΠ΅ΡΠ΅ ΠΏΡΠΎΠ΄ΡΠΊΡ, ΡΠΏΠ΅ΡΠΈΠ°Π»ΡΠ½ΠΎ ΠΏΡΠ΅Π΄Π½Π°Π·Π½Π°ΡΠ΅Π½Π½ΡΠΉ Π΄Π»Ρ Π»Π°ΠΌΠΈΠ½Π°ΡΠ°. ΠΠΎΡΠ»Π΅ ΡΠΎΠ³ΠΎ, ΠΊΠ°ΠΊ Π²Π΅ΡΡ Π½ΠΈΠΉ ΡΠ»ΠΎΠΉ Π±ΡΠ΄Π΅Ρ ΡΠ΄Π°Π»Π΅Π½, Π²Ρ ΠΌΠΎΠΆΠ΅ΡΠ΅ Π½Π°Π½Π΅ΡΡΠΈ Π½Π° ΠΏΠΎΠ» Π½ΠΎΠ²ΡΡ ΠΌΠΎΡΠΈΠ»ΠΊΡ ΠΈΠ»ΠΈ ΠΏΠΎΠΊΡΡΡΠΈΠ΅. ΠΠ°ΠΉΡΠ΅ Π΄ΠΎΡΡΠ°ΡΠΎΡΠ½ΠΎ Π²ΡΠ΅ΠΌΠ΅Π½ΠΈ Π΄Π»Ρ Π²ΡΡΡΡ Π°Π½ΠΈΡ ΠΌΠ΅ΠΆΠ΄Ρ ΡΠ»ΠΎΡΠΌΠΈ ΠΈ Π½Π°Π½Π΅ΡΠΈΡΠ΅ ΠΊΠ°ΠΊ ΠΌΠΈΠ½ΠΈΠΌΡΠΌ Π΄Π²Π° ΡΠ»ΠΎΡ ΠΎΡΠ΄Π΅Π»ΠΊΠΈ Π΄Π»Ρ ΠΊΡΠ°ΡΠΈΠ²ΠΎΠ³ΠΎ ΡΠΎΠ²Π½ΠΎΠ³ΠΎ Π²ΠΈΠ΄Π°.
ΠΠ°ΠΊΠΎΠ² ΡΡΠΎΠΊ ΡΠ»ΡΠΆΠ±Ρ Π»Π°ΠΌΠΈΠ½Π°ΡΠ°? Π‘ΡΠΎΠΊ ΡΠ»ΡΠΆΠ±Ρ Π±ΠΎΠ»ΡΡΠΈΠ½ΡΡΠ²Π° Π»Π°ΠΌΠΈΠ½ΠΈΡΠΎΠ²Π°Π½Π½ΡΡ
Π½Π°ΠΏΠΎΠ»ΡΠ½ΡΡ
ΠΏΠΎΠΊΡΡΡΠΈΠΉ ΡΠΎΡΡΠ°Π²Π»ΡΠ΅Ρ ΠΎΡ 15 Π΄ΠΎ 20 Π»Π΅Ρ ΠΏΡΠΈ Π½Π°Π΄Π»Π΅ΠΆΠ°ΡΠ΅ΠΌ ΡΡ
ΠΎΠ΄Π΅.
Π Π½Π΅ΠΊΠΎΡΠΎΡΡΡ
ΡΠ»ΡΡΠ°ΡΡ
Π²Π°Ρ Π»Π°ΠΌΠΈΠ½Π°Ρ ΠΌΠΎΠΆΠ΅Ρ ΠΏΡΠΎΡΠ»ΡΠΆΠΈΡΡ Π΄ΠΎ 30 Π»Π΅Ρ, Π΅ΡΠ»ΠΈ Π½Π°ΠΏΠΎΠ»ΡΠ½ΠΎΠ΅ ΠΏΠΎΠΊΡΡΡΠΈΠ΅ Π½Π΅ Π²ΡΠ΄Π΅ΡΠΆΠΈΠ²Π°Π΅Ρ Π±ΠΎΠ»ΡΡΠΎΠΉ Π½Π°Π³ΡΡΠ·ΠΊΠΈ ΠΈΠ»ΠΈ Π½Π΅ ΠΏΠΎΠ²ΡΠ΅ΠΆΠ΄Π΅Π½ΠΎ.ΠΠ»ΡΡΠΎΠΌ ΠΊ ΡΠΎΠΌΡ, ΡΡΠΎΠ±Ρ Π²Π°ΡΠΈ Π»Π°ΠΌΠΈΠ½ΠΈΡΠΎΠ²Π°Π½Π½ΡΠ΅ ΠΏΠΎΠ»Ρ Π²ΡΠ³Π»ΡΠ΄Π΅Π»ΠΈ ΠΊΠ°ΠΊ Π½ΠΎΠ²ΡΠ΅, ΡΠ²Π»ΡΠ΅ΡΡΡ ΡΠΎΡΠ΅ΡΠ°Π½ΠΈΠ΅ ΠΏΡΠ°Π²ΠΈΠ»ΡΠ½ΠΎΠΉ ΡΠΊΠ»Π°Π΄ΠΊΠΈ ΠΈ ΡΠ΅Π³ΡΠ»ΡΡΠ½ΠΎΠΉ ΡΠΈΡΡΠΊΠΈ. ΠΡΠΈ ΠΏΡΠ°Π²ΠΈΠ»ΡΠ½ΠΎΠΌ ΡΡ
ΠΎΠ΄Π΅ Π²Π°Ρ Π»Π°ΠΌΠΈΠ½Π°Ρ Π»Π΅Π³ΠΊΠΎ ΠΏΡΠΎΡΠ»ΡΠΆΠΈΡ Π½Π΅ ΠΎΠ΄ΠΈΠ½ Π΄Π΅ΡΡΡΠΎΠΊ Π»Π΅Ρ.
ΠΠ°ΠΌΠΈΠ½ΠΈΡΠΎΠ²Π°Π½Π½ΠΎΠ΅ Π½Π°ΠΏΠΎΠ»ΡΠ½ΠΎΠ΅ ΠΏΠΎΠΊΡΡΡΠΈΠ΅ ΡΠΎΡΡΠΎΠΈΡ ΠΈΠ· Π½Π΅ΡΠΊΠΎΠ»ΡΠΊΠΈΡ ΡΠ»ΠΎΠ΅Π² Ρ ΡΡΠ»ΡΠ½ΡΠΌ ΡΠ»ΠΎΠ΅ΠΌ Π½Π° Π΄Π½Π΅ Π΄Π»Ρ Π·Π°ΡΠΈΡΡ ΠΎΡ Π²Π»Π°Π³ΠΈ. ΠΡΠ½ΠΎΠ²Π½ΠΎΠΉ ΡΠ»ΠΎΠΉ ΡΠΎΡΡΠΎΠΈΡ ΠΈΠ· Π΄ΡΠ΅Π²Π΅ΡΠ½ΠΎΠΉ ΠΏΠ»ΠΈΡΡ Π²ΡΡΠΎΠΊΠΎΠΉ ΠΏΠ»ΠΎΡΠ½ΠΎΡΡΠΈ. Π‘Π»ΠΎΠΉ Π΄ΠΈΠ·Π°ΠΉΠ½Π° ΠΏΡΠ΅Π΄ΡΡΠ°Π²Π»ΡΠ΅Ρ ΡΠΎΠ±ΠΎΠΉ ΠΈΠ·ΠΎΠ±ΡΠ°ΠΆΠ΅Π½ΠΈΠ΅ Ρ Π²ΡΡΠΎΠΊΠΈΠΌ ΡΠ°Π·ΡΠ΅ΡΠ΅Π½ΠΈΠ΅ΠΌ, ΠΊΠΎΡΠΎΡΠΎΠ΅ Π²ΡΠ³Π»ΡΠ΄ΠΈΡ ΠΊΠ°ΠΊ Π΄Π΅ΡΠ΅Π²ΠΎ ΠΈΠ»ΠΈ ΠΊΠ°ΠΌΠ΅Π½Ρ Ρ Π²ΡΠ±ΡΠ°Π½Π½ΡΠΌ Π²Π°ΠΌΠΈ ΡΠ²Π΅ΡΠΎΠΌ.ΠΠ°ΠΊΠΎΠ½Π΅Ρ, ΠΏΠΎΠ²Π΅ΡΡ Π»Π°ΠΌΠΈΠ½ΠΈΡΠΎΠ²Π°Π½Π½ΡΡ ΠΏΠΎΠ»ΠΎΠ² Π½Π°Π½ΠΎΡΠΈΡΡΡ Π²Π΅ΡΡ Π½ΠΈΠΉ ΡΠ»ΠΎΠΉ ΠΈΠ· ΠΎΠΊΡΠΈΠ΄Π° Π°Π»ΡΠΌΠΈΠ½ΠΈΡ Π΄Π»Ρ Π·Π°ΡΠΈΡΡ Π»Π°ΠΌΠΈΠ½Π°ΡΠ° ΠΎΡ ΠΏΡΡΠ΅Π½ ΠΈ Π²ΡΡΠ²Π΅ΡΠ°Π½ΠΈΡ.
ΠΠΎΠΆΠ½ΠΎ Π»ΠΈ ΠΎΠΊΡΠ°ΡΠΈΠ²Π°ΡΡ Π»Π°ΠΌΠΈΠ½Π°Ρ? ΠΠ°ΠΌΠΈΠ½Π°Ρ Π½Π΅Π»ΡΠ·Ρ ΠΎΠΊΡΠ°ΡΠΈΠ²Π°ΡΡ, ΡΠ°ΠΊ ΠΊΠ°ΠΊ ΠΎΠ½ Π½Π΅ ΡΠ΄Π΅Π»Π°Π½ ΠΈΠ· Π½Π°ΡΡΡΠ°Π»ΡΠ½ΠΎΠ³ΠΎ Π΄Π΅ΡΠ΅Π²Π°. ΠΠ°ΡΠ΅ΡΠΈΠ°Π» Π½Π΅ ΠΏΠΎΠ·Π²ΠΎΠ»ΠΈΡ ΠΏΡΡΠ½Ρ ΠΏΡΠΎΡΠΎΡΠΈΡΡΡΡ Π²Π½ΡΡΡΡ, ΠΈΠ·-Π·Π° ΡΠ΅Π³ΠΎ ΠΏΡΡΠ½ΠΎ Π±ΡΠ΄Π΅Ρ ΡΠΊΠ°ΠΏΠ»ΠΈΠ²Π°ΡΡΡΡ Π½Π° ΠΏΠΎΠ»Ρ.
ΠΡΠ»ΠΈ Π²Ρ Ρ
ΠΎΡΠΈΡΠ΅ ΠΈΠ·ΠΌΠ΅Π½ΠΈΡΡ ΡΠ²Π΅Ρ ΠΈΠ»ΠΈ ΠΎΠΆΠΈΠ²ΠΈΡΡ Π»Π°ΠΌΠΈΠ½Π°Ρ, Π²Ρ ΠΌΠΎΠΆΠ΅ΡΠ΅ ΠΏΠΎΠΊΡΠ°ΡΠΈΡΡ ΠΈΠ»ΠΈ ΠΎΡΠΏΠΎΠ»ΠΈΡΠΎΠ²Π°ΡΡ Π΅Π³ΠΎ, ΠΈΡΠΏΠΎΠ»ΡΠ·ΡΡ ΠΏΠΎΠΊΡΡΡΠΈΠ΅ Π΄Π»Ρ ΠΏΠΎΠ»Π°, ΡΠΏΠ΅ΡΠΈΠ°Π»ΡΠ½ΠΎ ΠΏΡΠ΅Π΄Π½Π°Π·Π½Π°ΡΠ΅Π½Π½ΠΎΠ΅ Π΄Π»Ρ Π»Π°ΠΌΠΈΠ½Π°ΡΠ°.ΠΡΠΏΠΎΠ»ΡΠ·ΡΠΉΡΠ΅ ΡΠΈΡΡΡΡΠ΅Π΅ ΡΡΠ΅Π΄ΡΡΠ²ΠΎ Π΄Π»Ρ Π»Π°ΠΌΠΈΠ½Π°ΡΠ°, ΡΡΠΎΠ±Ρ ΡΠΎΠ΄Π΅ΡΠΆΠ°ΡΡ Π² ΡΠΈΡΡΠΎΡΠ΅ ΡΠΎΠ»ΡΠΊΠΎ ΡΡΠΎ ΠΎΡΠ΄Π΅Π»Π°Π½Π½ΡΠ΅ ΠΏΠΎΠ»Ρ.
ΠΡ ΠΌΠΎΠΆΠ΅ΡΠ΅ ΡΠΊΠ»Π°Π΄ΡΠ²Π°ΡΡ Π»Π°ΠΌΠΈΠ½Π°Ρ ΠΏΠΎΠ²Π΅ΡΡ ΠΏΠ»ΠΈΡΠΊΠΈ, Π΅ΡΠ»ΠΈ ΠΏΠ»ΠΈΡΠΊΠ° Π½Π°Ρ ΠΎΠ΄ΠΈΡΡΡ Π² Ρ ΠΎΡΠΎΡΠ΅ΠΌ ΡΠΎΡΡΠΎΡΠ½ΠΈΠΈ. Π’ΡΠ΅ΡΠ½ΡΠ²ΡΠ°Ρ, ΠΎΡΡΡΡΡΡΠ²ΡΡΡΠ°Ρ ΠΈΠ»ΠΈ ΠΏΠΎΠ²ΡΠ΅ΠΆΠ΄Π΅Π½Π½Π°Ρ ΠΏΠ»ΠΈΡΠΊΠ° ΡΠΎΠ·Π΄Π°ΡΡ Π½Π΅ΡΠΎΠ²Π½ΡΡ ΠΏΠΎΠ²Π΅ΡΡ Π½ΠΎΡΡΡ, ΠΊΠΎΡΠΎΡΠ°Ρ Π·Π°ΡΡΡΠ΄Π½ΠΈΡ ΡΡΡΠ°Π½ΠΎΠ²ΠΊΡ. ΠΡΠΏΠΎΠ»ΡΠ·ΡΠΉΡΠ΅ ΠΊΠ»Π΅ΠΉ, ΡΡΠΎΠ±Ρ Π·Π°ΠΊΡΠ΅ΠΏΠΈΡΡ ΠΏΠ»Π°Π½ΠΊΠΈ Π»Π°ΠΌΠΈΠ½Π°ΡΠ° ΠΏΠΎΠ²Π΅ΡΡ ΠΏΠ»ΠΈΡΠΊΠΈ. ΠΡΠ΅Π³Π΄Π° ΠΎΡΡΠ°Π²Π»ΡΠΉΡΠ΅ Π·Π°Π·ΠΎΡ ΠΏΠΎ ΠΏΠ΅ΡΠΈΠΌΠ΅ΡΡΡ ΠΊΠΎΠΌΠ½Π°ΡΡ Π΄Π»Ρ ΡΠ°ΡΡΠΈΡΠ΅Π½ΠΈΡ.
ΠΠ°ΠΊ ΠΈΡΠΏΡΠ°Π²ΠΈΡΡ ΠΏΠΎΠ²ΡΠ΅ΠΆΠ΄Π΅Π½ΠΈΠ΅ Π»Π°ΠΌΠΈΠ½Π°ΡΠ° Π²ΠΎΠ΄ΠΎΠΉ? ΠΡΠ»ΠΈ Π²Π°ΡΠΈ Π»Π°ΠΌΠΈΠ½ΠΈΡΠΎΠ²Π°Π½Π½ΡΠ΅ ΠΏΠΎΠ»Ρ ΠΏΠΎΠ²ΡΠ΅ΠΆΠ΄Π΅Π½Ρ ΠΈΠ·-Π·Π° ΠΏΡΠΎΡΠ΅ΡΠΊΠΈ, ΡΠ½Π°ΡΠ°Π»Π° Π½Π΅ΠΎΠ±Ρ
ΠΎΠ΄ΠΈΠΌΠΎ Π½Π°ΠΉΡΠΈ ΠΈΡΡΠΎΡΠ½ΠΈΠΊ ΠΏΡΠΎΠ±Π»Π΅ΠΌΡ.ΠΠ΅ΡΠ΅Π΄ ΡΠ΅ΠΌΠΎΠ½ΡΠΎΠΌ Π»Π°ΠΌΠΈΠ½ΠΈΡΠΎΠ²Π°Π½Π½ΠΎΠ³ΠΎ ΠΏΠΎΠ»Π° ΡΠ±Π΅Π΄ΠΈΡΠ΅ΡΡ, ΡΡΠΎ Π²ΡΠ΅ ΡΡΠ΅ΡΠΊΠΈ ΡΡΡΡΠ°Π½Π΅Π½Ρ. ΠΠ½ΠΈΠΌΠ°ΡΠ΅Π»ΡΠ½ΠΎ ΠΎΡΠΌΠΎΡΡΠΈΡΠ΅ ΠΏΠΎΠ» ΠΈ Π½Π°ΠΉΠ΄ΠΈΡΠ΅ ΠΏΡΠ·ΡΡΠΈ ΠΈΠ»ΠΈ ΠΏΡΡΠ½Π°, ΠΊΠΎΡΠΎΡΡΠ΅ Π΄Π΅ΡΠΎΡΠΌΠΈΡΠΎΠ²Π°Π»ΠΈΡΡ, ΠΈ ΠΎΡΠΌΠ΅ΡΡΡΠ΅ ΠΈΡ
Π½Π΅Π±ΠΎΠ»ΡΡΠΈΠΌ ΠΊΡΡΠΎΡΠΊΠΎΠΌ ΠΌΠ°Π»ΡΡΠ½ΠΎΠ³ΠΎ ΡΠΊΠΎΡΡΠ°.














ΠΡΠΏΠΎΠ»ΡΠ·ΡΠΉΡΠ΅ ΡΠΈΡΡΡΡΠ΅Π΅ ΡΡΠ΅Π΄ΡΡΠ²ΠΎ Π΄Π»Ρ Π»Π°ΠΌΠΈΠ½Π°ΡΠ° ΡΠ²ΠΎΠΈΠΌΠΈ ΡΡΠΊΠ°ΠΌΠΈ ΡΠ°Π· Π² Π½Π΅Π΄Π΅Π»Ρ ΠΈ ΠΏΠΎΠ»ΠΈΡΡΠΉΡΠ΅ ΠΏΠΎΠ» ΠΊΡΡΠ³ΠΎΠ²ΡΠΌΠΈ Π΄Π²ΠΈΠΆΠ΅Π½ΠΈΡΠΌΠΈ Ρ ΠΏΠΎΠΌΠΎΡΡΡ ΠΌΡΠ³ΠΊΠΎΠΉ ΡΠΊΠ°Π½ΠΈ ΠΈΠ· ΠΌΠΈΠΊΡΠΎΡΠΈΠ±ΡΡ ΠΈΠ»ΠΈ Π»ΡΡΡΠ΅ΠΉ ΡΠ²Π°Π±ΡΡ Π΄Π»Ρ Π»Π°ΠΌΠΈΠ½Π°ΡΠ°. ΠΠ΅ ΠΈΡΠΏΠΎΠ»ΡΠ·ΡΠΉΡΠ΅ ΠΏΠΎΠ»ΠΈΡΠΎΠ»Ρ ΠΈΠ»ΠΈ Π²ΠΎΡΠΊ, ΠΈΠ½Π°ΡΠ΅ ΠΎΠ½ΠΈ ΠΌΠΎΠ³ΡΡ ΠΎΡΡΠ°Π²ΠΈΡΡ ΠΏΠΎΡΠ»Π΅ ΡΠ΅Π±Ρ Π»ΠΈΠΏΠΊΠΈΠ΅ ΠΏΠ»Π΅Π½ΠΊΠΈ.