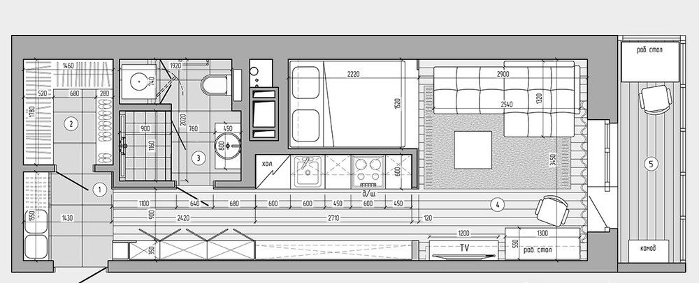
Планировки студий 30 кв м: планировка интерьера кухни с гостиной
планировка интерьера кухни с гостиной
Планировка
Если вы приобрели однокомнатную квартиру или квартиру – студию площадью не более 30 кв.м., то, конечно же, стоит заранее продумать интерьер ваших будущих, пусть и небольших, но апартаментов.
Очень важно, чтобы планировка вашей квартиры удовлетворяла не только эстетические потребности, но также была для вас комфортной и функциональной.
Кроме того, вы также можете сделать квартиру — студию и в обычной «хрущевке».
Говоря о планировке квартиры – студии, стоит учитывать один важный момент — такая квартира не всегда предполагает полностью открытое пространство.
Например, между кухней и гостиной (или зоной отдыха), отличным вариантом перегородки может стать барная стойка или же декоративный камин. Такая объединенная кухня – гостиная как раз таки и является классическим вариантом квартиры – студии.
В небольшой квартире такого плана обособленным помещением чаще всего бывает только санузел, остальное пространство не имеет перегородок, кроме декоративных.
Кроме того, очень часто выполняются незначительные изменения в планировке однокомнатной квартиры, если есть балкон или лоджия. Например, объединяют комнату с балконом.
Это делается для того, чтобы получить больше пространства.
Очень удачным вариантом может быть не только квартира – студия с одним большим окном,
но и с двумя окнами.
Благодаря интересной панировке рядом с окнами можно разместить уютное место для чтения.
Не имеет значения, будете ли вы пользоваться услугами дизайнера или же самостоятельно займетесь планировкой будущих апартаментов.
Чтобы правильно выполнить ремонт в квартире – студии, рекомендуется заранее продумывать все детали для будущей планировки, а также необходимо разработать индивидуальный проект на бумаге или же с помощью специальной программы.
Зонирование кухни – столовой
Даже в маленькой квартире столовая и кухонная зоны могут выглядеть стильно и эффектно несмотря на нахождение в одном помещении. Зонирование позволит получить вам не только необычную и функциональную обстановку, но также и оригинальный дизайн.
Зонированием является прием, используемый дизайнерами в разграничении пространства на разные функциональные зоны.Такой прием используется для получения условных границ, например, между кухней и столовой или зоной отдыха для более комфортного обитания в апартаментах.
Очень часто для осуществления зонирования используют различные материалы в отделке стен, потолка и пола, чтобы с помощью тех или иных цветов «отделить» несколько зон.
Способов зонирования существует довольно много и вам необязательно использовать какой – то один, чаще всего следует сочетать несколько для получения наилучшего результата.
Отделить кухню от столовой вы можете с помощью различной мебели, например, барной стойки, декоративного камина или дивана.
Очень удачным и интересным вариантом зонирования могут стать декоративные перегородки. Но их основная цель не полностью отделить комнаты и что – либо скрыть, а лишь выполнить условное разделение.
Такие декоративные перегородки могут быть из стекла,
дерева или различного текстиля.Кроме того, очень часто зоны отделяются с помощью различной отделки стен. Например, кухня у вас может быть с кафельной отделкой в сочетании с обоями, а столовая только с отделкой обоями, но уже другого цвета.
Рабочее место
Рабочее место в небольшой квартире — студии можно также оформить со вкусом.
Рекомендуется обставлять его рядом с одним большим окном, это придаст больше уюта.
Конечно, в маленькой квартире – студии отдельное рабочее место вы вряд ли сделаете, но оптимальным вариантом его размещения может стать спальная зона.
Если места совсем уж мало, то отличным вариантом станет размещение специального раздвижного столика с полочкой. Он послужит вам мини – кабинетом.
На нем вы можете разместить ноутбук и принтер, а также любой элемент декора, например лампу.
Кроме того, современный рынок мебели предлагает довольно много конструкция такого типа, которые как раз таки очень компактны и в то же время стильные.
Для размещения рабочего места в гостиной, которая в небольшой квартире может также выполнять функции спальни лучше выбирать различные компактные модели столиков.
Очень удачным вариантом может стать столик, который крепится к стене и имеет всего две ножки. Он занимает очень мало места, но зато смотрится очень изящно и ненавязчиво. Однако такой столик не подойдет для стационарного компьютера, так как столешница здесь небольшая.
Если в вашей квартире – студии есть ниша, то, конечно же, смело переоборудуйте ее и размещайте ваше рабочее место именно там. Кроме того, уместно также будет разместить рабочее место с компьютером и полочками для книг на балконе, при его наличии.
Или же, при объединении балкона с комнатой. Не забывайте, что в данном случае рекомендуется применить такой прием, как зонирование, т.е. выделение вашего рабочего места, например, с помощью напольного или настенного покрытия, которое будет отделять функциональную рабочую зону. Таким образом, она будет казаться обособленной и более уютной для вашей работы.Прихожая
Несмотря на то, что вы располагаете совсем небольшой площадью для оформления прихожей, обустроить ее вы можете очень стильно и практично. В этом помещении рекомендуется установить встроенный шкаф. Он очень компактен, но вмещает в себя довольно много вещей и обуви, а иногда и бытовую технику, например, пылесос.
Прихожую вы можете изолировать от кухни с помощью двери или же стильной арки.
Очень выгодно будет смотреться дверь с зеркалом, таким образом, вы не только визуально увеличите комнату, но и сэкономите место для установки дополнительного зеркала.
Если ваша прихожая не отделена стенами, то идеальным вариантом здесь станет зонирование с помощью напольного покрытия. Для начала вам нужно определиться с площадью, которую будет занимать прихожая и выбрать соответствующее покрытие для пола. Например, плитку или ламинат. Кроме того, отделить прихожую от другой комнаты вы можете с помощью ковра нужного размера, который будет четко разделять границы.
Такое решение с напольным покрытием поможет вам не только визуально отделить прихожую, но также и сделать её максимально уютной.
Очень часто для разделения функциональных зон используют декоративные разделители или экраны.
Они полупрозрачные, не создают глухих стен. Бывают различные варианты из текстиля. Например, шторки, с помощью которых вы не только отделите прихожую, например, от кухни, но и добавите очень интересный элемент декора.
Если планировка квартиры или же ваш собственный образ жизни не требует огромного внимания к прихожей, то оформите её в стиле минимализм, без лишних усилий. Например, просто разместите крючки для одежды и небольшие полки.
И, наконец, если в вашей квартире – студии катастрофически не хватает места и, заходя в квартиру, вы попадаете сразу в спальную зону, то лучше всего задуматься хотя бы о декоративных стенах, которые разделят несколько помещений. Именно в этом случае отделение прихожей очень необходимо.
Санузел
Как уже говорилось, в квартирах-студиях небольшого размера обособленным помещением является только санузел.
Но, несмотря на небольшое пространство, и это помещение можно обустроить функционально и со вкусом.
Если ваша квартира выполняется в определенном дизайне и цветовых решениях, то не забывайте, что и санузел, хоть он и обособлен, также должен соответствовать общему интерьеру квартиры.
Основной проблемой является ограниченность пространства, поэтому санузел чаще всего совмещенный. Чтобы сэкономить пространство, рекомендуется устанавливать угловые раковины, предпочтение отдавать душевым кабинам, например, прямоугольным, которые не занимают много места и, конечно же, устанавливать малогабаритную сантехнику.
Также не забывайте и о том, что визуально увеличить и без того малое пространство вы можете с помощью светлых оттенков в отделке санузла, а также с помощью грамотно подобранного освещения.
При возможности, стиральную машинку рекомендуется устанавливать на кухне, потому что ваш санузел и без того страдает от нехватки площади.
Варианты идей современного интерьера
Однокомнатная квартира – студия с площадью 30 кв.м — это, конечно же, мало. Но, если оформить такую квартиру со вкусом, даже в этих небольших апартаментах вам будет очень комфортно жить.
Ведь даже в маленьком помещении можно очень выгодно обустроить пространство для всего необходимого, стоит только задуматься о хорошем и компактном оборудовании, мебели и, конечно же, дизайне и интерьере.
Для многих не секрет, что самые оптимальные стили для оформления небольших и современных квартир это: стиль хай – тек, стиль лофт и, конечно же, всеми любимый минимализм. Чтобы верно подобрать дизайн интерьера лучше всего заранее подумать о будущем проекте.
Так вы не только сможете на бумаге или компьютере просмотреть детальное расположение мебели, но и увидеть вид сверху на каждую комнату, что также немаловажно.
В стиле «хай – тек»
Дизайн квартиры – студии в стиле хай – тек подходит, в первую очередь, для тех людей, для которых на первом месте стоит оформление, отделка и интерьер квартиры в целом.
Для такого стиля вполне подойдёт небольшая площадь в 30 кв.м.
Для такого стиля характерно использовать металл, пластик и, конечно же, стекло. К тому же, данные материалы всегда визуально увеличивают пространство. Стилю хай – тек присуще использовать серые и светлые оттенки в отделке квартиры. А также оранжево – черные, серебристые, бежевые и сливочно – белые. Их умелое сочетание вовсе не сделает вашу квартиру мрачной или тесной, а, наоборот, стильной и просторной.
В такой квартире – студии будьте внимательны с освещением. Оно не должно быть навязчивым, но должно быть верно подобранным. Чтобы правильно оформить свет, многие дизайнеры рекомендуют использовать точечные светильники на потолке и, например, в нишах, а также различные декоративные лампы.
Также не забывайте о правильной расстановке мебели и о том, что для данного стиля характерна функциональность и практичность во всем.
Любая мебель должна иметь свое назначение. Очень удачно будет смотреться различная мебель с металлическими вставками, например, выгодным и интересным решением в интерьере может стать диван – кровать, который будет занимать мало пространства, но будет очень функциональным.
Зонирование в квартире – студии вы можете сделать с помощью декоративных стеклянных перегородок или же, оставить открытое пространство, разделив все функциональные зоны с помощью разной отделки пола и стен.
Стиль хай – тек подойдет не только для одиноких, уверенных в себе личностей, но также и для молодой пары.
В стиле «Лофт»
Такой стиль вполне можно применить в небольшой квартире.
Но очень важно то, что в ней вы можете разместить все самое необходимо для комфортной жизни. Стиль лофт очень популярен в последние годы, потому что является не только современным и модным, но и функциональным.
Классический вариант оформления такого стиля в небольшой квартире предполагает наличие открытого пространства без лишних перегородок. Отдельной комнатой будет только санузел. При этом кухню от гостиной зоны вы можете отделить, например, с помощью барной стойки или небольшого декоративного камина. Для данного стиля характерно оформление кирпичом. Ваше рабочее место вы можете отделить с помощью раздвижного комода.
Для данного стиля лучше использовать плитку с различными принтами и различные деревянные поверхности. В данном стиле предпочтение стоит отдавать различной функциональной мебели. Гостиная, совмещенная со спальней, может быть дополнена большим диваном, который при необходимости вы можете разложить в кровать.
Что же касается санузла в такой квартире, то его также необходимо оформлять в этом же стиле. Например, можно выбрать плитку, которая будет имитировать состаренную доску. Тумбу для раковины и обрамление зеркала лучше выбрать из дерева. Душевую кабину можно разместить из стекла или же выбрать вариант со шторкой. Различные детали можно выбрать в бронзовых оттенках.
Минимализм
Чтобы создать квартиру в таком стиле, достаточно использовать светлые оттенки, которые добавят больше простора, предпочтение также стоит отдавать простым формам и негромоздкой, функциональной и раскладной мебели.
Для оформления небольшой квартиры лучше не использовать лишние перегородки, так как лучшим вариантом в стиле минимализма станет свободное пространство. Обставить такую квартиру лучше минимумом мебели. Зонирование следует выполнять с помощью пола или стен.
Говоря о квартире в стиле минимализм, можно представить следующее: заходя в квартиру, вы можете оформить небольшой коридор, по вашему желанию вы можете отделить его с помощью двери с зеркалом или же арки. Далее вы попадете непосредственно в студийное пространство, где будет находиться кухня и гостиная. Выход в санузел будет из коридора или прихожей.
Для оформления квартиры в таком стиле предпочтение отдавайте белым, сливочным и песочным оттенкам. Можно умело сочетать кремовые оттенки с шоколадными или же выбирать контрастную мебель.
В классическом стиле
В таком стиле вполне уместно использовать современную технику, хоть он и ассоциируется у нас с чем – то исключительно пышным и роскошным.
Классический стиль, однозначно, выйдет вам в копеечку, но зато будет поистине роскошным и не оставит ни одного гостя равнодушным, даже в маленьких апартаментах. Для данного стиля характерно использовать исключительно натуральные материалы в отделке, а также изысканные обои и текстиль.
Преимущественно использовать различные светлые, теплые и золотые оттенки в отделке стен. Можно размещать зеркала не только в прихожей, но и непосредственно в гостиной. Оформляя непосредственно кухню, не забывайте, что все металлические элементы должны быть стилизованы под классику.
Отделить кухонную и гостиную зоны можно не только с помощью зонирования пола и стен, но также и с помощью декоративного камина в классическом стиле или другой мебели.
Дополнить классический интерьер вы можете с помощью различного рода ваз с роскошными розами, светильников или подсвечников. Вы можете расставить их непосредственно в гостиной зоне, где они будут очень удачно сочетаться с интерьером.
Чтобы такой классический стиль соответствовал всем требованиям современной жизни, необходимо помнить, что вам нужно умело сочетать практичность и изысканность.
планировка интерьера кухни с гостиной
Планировка
Если вы приобрели однокомнатную квартиру или квартиру – студию площадью не более 30 кв.
м., то, конечно же, стоит заранее продумать интерьер ваших будущих, пусть и небольших, но апартаментов.
Очень важно, чтобы планировка вашей квартиры удовлетворяла не только эстетические потребности, но также была для вас комфортной и функциональной.
Кроме того, вы также можете сделать квартиру — студию и в обычной «хрущевке».
Говоря о планировке квартиры – студии, стоит учитывать один важный момент — такая квартира не всегда предполагает полностью открытое пространство. Это значит, что включив фантазию, вы сами можете подумать о различных перегородках.
Например, между кухней и гостиной (или зоной отдыха), отличным вариантом перегородки может стать барная стойка или же декоративный камин.
Такая объединенная кухня – гостиная как раз таки и является классическим вариантом квартиры – студии.
В небольшой квартире такого плана обособленным помещением чаще всего бывает только санузел, остальное пространство не имеет перегородок, кроме декоративных.
Кроме того, очень часто выполняются незначительные изменения в планировке однокомнатной квартиры, если есть балкон или лоджия. Например, объединяют комнату с балконом.
Это делается для того, чтобы получить больше пространства.
Очень удачным вариантом может быть не только квартира – студия с одним большим окном,
но и с двумя окнами.
Благодаря интересной панировке рядом с окнами можно разместить уютное место для чтения.
Не имеет значения, будете ли вы пользоваться услугами дизайнера или же самостоятельно займетесь планировкой будущих апартаментов.
Чтобы правильно выполнить ремонт в квартире – студии, рекомендуется заранее продумывать все детали для будущей планировки, а также необходимо разработать индивидуальный проект на бумаге или же с помощью специальной программы.
Зонирование кухни – столовой
Даже в маленькой квартире столовая и кухонная зоны могут выглядеть стильно и эффектно несмотря на нахождение в одном помещении.
Зонирование позволит получить вам не только необычную и функциональную обстановку, но также и оригинальный дизайн.
Зонированием является прием, используемый дизайнерами в разграничении пространства на разные функциональные зоны.
Такой прием используется для получения условных границ, например, между кухней и столовой или зоной отдыха для более комфортного обитания в апартаментах.
Очень часто для осуществления зонирования используют различные материалы в отделке стен, потолка и пола, чтобы с помощью тех или иных цветов «отделить» несколько зон.
Способов зонирования существует довольно много и вам необязательно использовать какой – то один, чаще всего следует сочетать несколько для получения наилучшего результата.
Отделить кухню от столовой вы можете с помощью различной мебели, например, барной стойки, декоративного камина или дивана.
Очень удачным и интересным вариантом зонирования могут стать декоративные перегородки. Но их основная цель не полностью отделить комнаты и что – либо скрыть, а лишь выполнить условное разделение.
Такие декоративные перегородки могут быть из стекла,
дерева или различного текстиля.
Кроме того, очень часто зоны отделяются с помощью различной отделки стен.
Например, кухня у вас может быть с кафельной отделкой в сочетании с обоями, а столовая только с отделкой обоями, но уже другого цвета.
Рабочее место
Рабочее место в небольшой квартире — студии можно также оформить со вкусом.
Рекомендуется обставлять его рядом с одним большим окном, это придаст больше уюта.
Конечно, в маленькой квартире – студии отдельное рабочее место вы вряд ли сделаете, но оптимальным вариантом его размещения может стать спальная зона.
Если места совсем уж мало, то отличным вариантом станет размещение специального раздвижного столика с полочкой. Он послужит вам мини – кабинетом.
На нем вы можете разместить ноутбук и принтер, а также любой элемент декора, например лампу.
Кроме того, современный рынок мебели предлагает довольно много конструкция такого типа, которые как раз таки очень компактны и в то же время стильные.
Для размещения рабочего места в гостиной, которая в небольшой квартире может также выполнять функции спальни лучше выбирать различные компактные модели столиков.
Очень удачным вариантом может стать столик, который крепится к стене и имеет всего две ножки. Он занимает очень мало места, но зато смотрится очень изящно и ненавязчиво.
Однако такой столик не подойдет для стационарного компьютера, так как столешница здесь небольшая.
Если в вашей квартире – студии есть ниша, то, конечно же, смело переоборудуйте ее и размещайте ваше рабочее место именно там. Кроме того, уместно также будет разместить рабочее место с компьютером и полочками для книг на балконе, при его наличии.
Плюсом будет также обособленность рабочей зоны. Или же, при объединении балкона с комнатой. Не забывайте, что в данном случае рекомендуется применить такой прием, как зонирование, т.е. выделение вашего рабочего места, например, с помощью напольного или настенного покрытия, которое будет отделять функциональную рабочую зону.
Таким образом, она будет казаться обособленной и более уютной для вашей работы.
Прихожая
Несмотря на то, что вы располагаете совсем небольшой площадью для оформления прихожей, обустроить ее вы можете очень стильно и практично. В этом помещении рекомендуется установить встроенный шкаф. Он очень компактен, но вмещает в себя довольно много вещей и обуви, а иногда и бытовую технику, например, пылесос.
Прихожую вы можете изолировать от кухни с помощью двери или же стильной арки.
Очень выгодно будет смотреться дверь с зеркалом, таким образом, вы не только визуально увеличите комнату, но и сэкономите место для установки дополнительного зеркала.
Если ваша прихожая не отделена стенами, то идеальным вариантом здесь станет зонирование с помощью напольного покрытия. Для начала вам нужно определиться с площадью, которую будет занимать прихожая и выбрать соответствующее покрытие для пола. Например, плитку или ламинат. Кроме того, отделить прихожую от другой комнаты вы можете с помощью ковра нужного размера, который будет четко разделять границы.
Такое решение с напольным покрытием поможет вам не только визуально отделить прихожую, но также и сделать её максимально уютной.
Очень часто для разделения функциональных зон используют декоративные разделители или экраны. Они полупрозрачные, не создают глухих стен.
Бывают различные варианты из текстиля. Например, шторки, с помощью которых вы не только отделите прихожую, например, от кухни, но и добавите очень интересный элемент декора.
Если планировка квартиры или же ваш собственный образ жизни не требует огромного внимания к прихожей, то оформите её в стиле минимализм, без лишних усилий. Например, просто разместите крючки для одежды и небольшие полки.
И, наконец, если в вашей квартире – студии катастрофически не хватает места и, заходя в квартиру, вы попадаете сразу в спальную зону, то лучше всего задуматься хотя бы о декоративных стенах, которые разделят несколько помещений. Именно в этом случае отделение прихожей очень необходимо.
Санузел
Как уже говорилось, в квартирах-студиях небольшого размера обособленным помещением является только санузел.
Но, несмотря на небольшое пространство, и это помещение можно обустроить функционально и со вкусом.
Если ваша квартира выполняется в определенном дизайне и цветовых решениях, то не забывайте, что и санузел, хоть он и обособлен, также должен соответствовать общему интерьеру квартиры.
Основной проблемой является ограниченность пространства, поэтому санузел чаще всего совмещенный. Чтобы сэкономить пространство, рекомендуется устанавливать угловые раковины, предпочтение отдавать душевым кабинам, например, прямоугольным, которые не занимают много места и, конечно же, устанавливать малогабаритную сантехнику.
Также не забывайте и о том, что визуально увеличить и без того малое пространство вы можете с помощью светлых оттенков в отделке санузла, а также с помощью грамотно подобранного освещения.
При возможности, стиральную машинку рекомендуется устанавливать на кухне, потому что ваш санузел и без того страдает от нехватки площади.
Варианты идей современного интерьера
Однокомнатная квартира – студия с площадью 30 кв.м — это, конечно же, мало. Но, если оформить такую квартиру со вкусом, даже в этих небольших апартаментах вам будет очень комфортно жить.
Ведь даже в маленьком помещении можно очень выгодно обустроить пространство для всего необходимого, стоит только задуматься о хорошем и компактном оборудовании, мебели и, конечно же, дизайне и интерьере.
Для многих не секрет, что самые оптимальные стили для оформления небольших и современных квартир это: стиль хай – тек, стиль лофт и, конечно же, всеми любимый минимализм. Чтобы верно подобрать дизайн интерьера лучше всего заранее подумать о будущем проекте.
Так вы не только сможете на бумаге или компьютере просмотреть детальное расположение мебели, но и увидеть вид сверху на каждую комнату, что также немаловажно.
В стиле «хай – тек»
Дизайн квартиры – студии в стиле хай – тек подходит, в первую очередь, для тех людей, для которых на первом месте стоит оформление, отделка и интерьер квартиры в целом.
Для такого стиля вполне подойдёт небольшая площадь в 30 кв.м.
Для такого стиля характерно использовать металл, пластик и, конечно же, стекло. К тому же, данные материалы всегда визуально увеличивают пространство. Стилю хай – тек присуще использовать серые и светлые оттенки в отделке квартиры. А также оранжево – черные, серебристые, бежевые и сливочно – белые. Их умелое сочетание вовсе не сделает вашу квартиру мрачной или тесной, а, наоборот, стильной и просторной.
В такой квартире – студии будьте внимательны с освещением. Оно не должно быть навязчивым, но должно быть верно подобранным. Чтобы правильно оформить свет, многие дизайнеры рекомендуют использовать точечные светильники на потолке и, например, в нишах, а также различные декоративные лампы.
Также не забывайте о правильной расстановке мебели и о том, что для данного стиля характерна функциональность и практичность во всем.
Любая мебель должна иметь свое назначение. Очень удачно будет смотреться различная мебель с металлическими вставками, например, выгодным и интересным решением в интерьере может стать диван – кровать, который будет занимать мало пространства, но будет очень функциональным.
Зонирование в квартире – студии вы можете сделать с помощью декоративных стеклянных перегородок или же, оставить открытое пространство, разделив все функциональные зоны с помощью разной отделки пола и стен.
Стиль хай – тек подойдет не только для одиноких, уверенных в себе личностей, но также и для молодой пары.
В стиле «Лофт»
Такой стиль вполне можно применить в небольшой квартире.
Но очень важно то, что в ней вы можете разместить все самое необходимо для комфортной жизни. Стиль лофт очень популярен в последние годы, потому что является не только современным и модным, но и функциональным.
Классический вариант оформления такого стиля в небольшой квартире предполагает наличие открытого пространства без лишних перегородок. Отдельной комнатой будет только санузел. При этом кухню от гостиной зоны вы можете отделить, например, с помощью барной стойки или небольшого декоративного камина. Для данного стиля характерно оформление кирпичом. Ваше рабочее место вы можете отделить с помощью раздвижного комода.
Для данного стиля лучше использовать плитку с различными принтами и различные деревянные поверхности. В данном стиле предпочтение стоит отдавать различной функциональной мебели. Гостиная, совмещенная со спальней, может быть дополнена большим диваном, который при необходимости вы можете разложить в кровать.
Что же касается санузла в такой квартире, то его также необходимо оформлять в этом же стиле. Например, можно выбрать плитку, которая будет имитировать состаренную доску. Тумбу для раковины и обрамление зеркала лучше выбрать из дерева. Душевую кабину можно разместить из стекла или же выбрать вариант со шторкой. Различные детали можно выбрать в бронзовых оттенках.
Минимализм
Чтобы создать квартиру в таком стиле, достаточно использовать светлые оттенки, которые добавят больше простора, предпочтение также стоит отдавать простым формам и негромоздкой, функциональной и раскладной мебели.
Для оформления небольшой квартиры лучше не использовать лишние перегородки, так как лучшим вариантом в стиле минимализма станет свободное пространство. Обставить такую квартиру лучше минимумом мебели. Зонирование следует выполнять с помощью пола или стен.
Говоря о квартире в стиле минимализм, можно представить следующее: заходя в квартиру, вы можете оформить небольшой коридор, по вашему желанию вы можете отделить его с помощью двери с зеркалом или же арки. Далее вы попадете непосредственно в студийное пространство, где будет находиться кухня и гостиная. Выход в санузел будет из коридора или прихожей.
Для оформления квартиры в таком стиле предпочтение отдавайте белым, сливочным и песочным оттенкам. Можно умело сочетать кремовые оттенки с шоколадными или же выбирать контрастную мебель.
В классическом стиле
В таком стиле вполне уместно использовать современную технику, хоть он и ассоциируется у нас с чем – то исключительно пышным и роскошным.
Классический стиль, однозначно, выйдет вам в копеечку, но зато будет поистине роскошным и не оставит ни одного гостя равнодушным, даже в маленьких апартаментах. Для данного стиля характерно использовать исключительно натуральные материалы в отделке, а также изысканные обои и текстиль.
Преимущественно использовать различные светлые, теплые и золотые оттенки в отделке стен. Можно размещать зеркала не только в прихожей, но и непосредственно в гостиной. Оформляя непосредственно кухню, не забывайте, что все металлические элементы должны быть стилизованы под классику.
Отделить кухонную и гостиную зоны можно не только с помощью зонирования пола и стен, но также и с помощью декоративного камина в классическом стиле или другой мебели.
Дополнить классический интерьер вы можете с помощью различного рода ваз с роскошными розами, светильников или подсвечников. Вы можете расставить их непосредственно в гостиной зоне, где они будут очень удачно сочетаться с интерьером.
Чтобы такой классический стиль соответствовал всем требованиям современной жизни, необходимо помнить, что вам нужно умело сочетать практичность и изысканность.
планировка интерьера кухни с гостиной
Планировка
Если вы приобрели однокомнатную квартиру или квартиру – студию площадью не более 30 кв.
м., то, конечно же, стоит заранее продумать интерьер ваших будущих, пусть и небольших, но апартаментов.
Очень важно, чтобы планировка вашей квартиры удовлетворяла не только эстетические потребности, но также была для вас комфортной и функциональной.
Кроме того, вы также можете сделать квартиру — студию и в обычной «хрущевке».
Говоря о планировке квартиры – студии, стоит учитывать один важный момент — такая квартира не всегда предполагает полностью открытое пространство. Это значит, что включив фантазию, вы сами можете подумать о различных перегородках.
Например, между кухней и гостиной (или зоной отдыха), отличным вариантом перегородки может стать барная стойка или же декоративный камин.
Такая объединенная кухня – гостиная как раз таки и является классическим вариантом квартиры – студии.
В небольшой квартире такого плана обособленным помещением чаще всего бывает только санузел, остальное пространство не имеет перегородок, кроме декоративных.
Кроме того, очень часто выполняются незначительные изменения в планировке однокомнатной квартиры, если есть балкон или лоджия. Например, объединяют комнату с балконом.
Это делается для того, чтобы получить больше пространства.
Очень удачным вариантом может быть не только квартира – студия с одним большим окном,
но и с двумя окнами.
Благодаря интересной панировке рядом с окнами можно разместить уютное место для чтения.
Не имеет значения, будете ли вы пользоваться услугами дизайнера или же самостоятельно займетесь планировкой будущих апартаментов.
Чтобы правильно выполнить ремонт в квартире – студии, рекомендуется заранее продумывать все детали для будущей планировки, а также необходимо разработать индивидуальный проект на бумаге или же с помощью специальной программы.
Зонирование кухни – столовой
Даже в маленькой квартире столовая и кухонная зоны могут выглядеть стильно и эффектно несмотря на нахождение в одном помещении.
Зонирование позволит получить вам не только необычную и функциональную обстановку, но также и оригинальный дизайн.
Зонированием является прием, используемый дизайнерами в разграничении пространства на разные функциональные зоны.
Такой прием используется для получения условных границ, например, между кухней и столовой или зоной отдыха для более комфортного обитания в апартаментах.
Очень часто для осуществления зонирования используют различные материалы в отделке стен, потолка и пола, чтобы с помощью тех или иных цветов «отделить» несколько зон.
Способов зонирования существует довольно много и вам необязательно использовать какой – то один, чаще всего следует сочетать несколько для получения наилучшего результата.
Отделить кухню от столовой вы можете с помощью различной мебели, например, барной стойки, декоративного камина или дивана.
Очень удачным и интересным вариантом зонирования могут стать декоративные перегородки. Но их основная цель не полностью отделить комнаты и что – либо скрыть, а лишь выполнить условное разделение.
Такие декоративные перегородки могут быть из стекла,
дерева или различного текстиля.
Кроме того, очень часто зоны отделяются с помощью различной отделки стен.
Например, кухня у вас может быть с кафельной отделкой в сочетании с обоями, а столовая только с отделкой обоями, но уже другого цвета.
Рабочее место
Рабочее место в небольшой квартире — студии можно также оформить со вкусом.
Рекомендуется обставлять его рядом с одним большим окном, это придаст больше уюта.
Конечно, в маленькой квартире – студии отдельное рабочее место вы вряд ли сделаете, но оптимальным вариантом его размещения может стать спальная зона.
Если места совсем уж мало, то отличным вариантом станет размещение специального раздвижного столика с полочкой. Он послужит вам мини – кабинетом.![]()
На нем вы можете разместить ноутбук и принтер, а также любой элемент декора, например лампу.
Кроме того, современный рынок мебели предлагает довольно много конструкция такого типа, которые как раз таки очень компактны и в то же время стильные.
Для размещения рабочего места в гостиной, которая в небольшой квартире может также выполнять функции спальни лучше выбирать различные компактные модели столиков.
Очень удачным вариантом может стать столик, который крепится к стене и имеет всего две ножки. Он занимает очень мало места, но зато смотрится очень изящно и ненавязчиво.
Однако такой столик не подойдет для стационарного компьютера, так как столешница здесь небольшая.
Если в вашей квартире – студии есть ниша, то, конечно же, смело переоборудуйте ее и размещайте ваше рабочее место именно там. Кроме того, уместно также будет разместить рабочее место с компьютером и полочками для книг на балконе, при его наличии.
Плюсом будет также обособленность рабочей зоны. Или же, при объединении балкона с комнатой. Не забывайте, что в данном случае рекомендуется применить такой прием, как зонирование, т.е. выделение вашего рабочего места, например, с помощью напольного или настенного покрытия, которое будет отделять функциональную рабочую зону.
Таким образом, она будет казаться обособленной и более уютной для вашей работы.
Прихожая
Несмотря на то, что вы располагаете совсем небольшой площадью для оформления прихожей, обустроить ее вы можете очень стильно и практично. В этом помещении рекомендуется установить встроенный шкаф. Он очень компактен, но вмещает в себя довольно много вещей и обуви, а иногда и бытовую технику, например, пылесос.
Прихожую вы можете изолировать от кухни с помощью двери или же стильной арки.
Очень выгодно будет смотреться дверь с зеркалом, таким образом, вы не только визуально увеличите комнату, но и сэкономите место для установки дополнительного зеркала.
Если ваша прихожая не отделена стенами, то идеальным вариантом здесь станет зонирование с помощью напольного покрытия. Для начала вам нужно определиться с площадью, которую будет занимать прихожая и выбрать соответствующее покрытие для пола. Например, плитку или ламинат. Кроме того, отделить прихожую от другой комнаты вы можете с помощью ковра нужного размера, который будет четко разделять границы.
Такое решение с напольным покрытием поможет вам не только визуально отделить прихожую, но также и сделать её максимально уютной.
Очень часто для разделения функциональных зон используют декоративные разделители или экраны. Они полупрозрачные, не создают глухих стен.
Бывают различные варианты из текстиля. Например, шторки, с помощью которых вы не только отделите прихожую, например, от кухни, но и добавите очень интересный элемент декора.
Если планировка квартиры или же ваш собственный образ жизни не требует огромного внимания к прихожей, то оформите её в стиле минимализм, без лишних усилий. Например, просто разместите крючки для одежды и небольшие полки.
И, наконец, если в вашей квартире – студии катастрофически не хватает места и, заходя в квартиру, вы попадаете сразу в спальную зону, то лучше всего задуматься хотя бы о декоративных стенах, которые разделят несколько помещений. Именно в этом случае отделение прихожей очень необходимо.
Санузел
Как уже говорилось, в квартирах-студиях небольшого размера обособленным помещением является только санузел.
Но, несмотря на небольшое пространство, и это помещение можно обустроить функционально и со вкусом.
Если ваша квартира выполняется в определенном дизайне и цветовых решениях, то не забывайте, что и санузел, хоть он и обособлен, также должен соответствовать общему интерьеру квартиры.
Основной проблемой является ограниченность пространства, поэтому санузел чаще всего совмещенный. Чтобы сэкономить пространство, рекомендуется устанавливать угловые раковины, предпочтение отдавать душевым кабинам, например, прямоугольным, которые не занимают много места и, конечно же, устанавливать малогабаритную сантехнику.
Также не забывайте и о том, что визуально увеличить и без того малое пространство вы можете с помощью светлых оттенков в отделке санузла, а также с помощью грамотно подобранного освещения.
При возможности, стиральную машинку рекомендуется устанавливать на кухне, потому что ваш санузел и без того страдает от нехватки площади.
Варианты идей современного интерьера
Однокомнатная квартира – студия с площадью 30 кв.м — это, конечно же, мало. Но, если оформить такую квартиру со вкусом, даже в этих небольших апартаментах вам будет очень комфортно жить.
Ведь даже в маленьком помещении можно очень выгодно обустроить пространство для всего необходимого, стоит только задуматься о хорошем и компактном оборудовании, мебели и, конечно же, дизайне и интерьере.
Для многих не секрет, что самые оптимальные стили для оформления небольших и современных квартир это: стиль хай – тек, стиль лофт и, конечно же, всеми любимый минимализм. Чтобы верно подобрать дизайн интерьера лучше всего заранее подумать о будущем проекте.
Так вы не только сможете на бумаге или компьютере просмотреть детальное расположение мебели, но и увидеть вид сверху на каждую комнату, что также немаловажно.
В стиле «хай – тек»
Дизайн квартиры – студии в стиле хай – тек подходит, в первую очередь, для тех людей, для которых на первом месте стоит оформление, отделка и интерьер квартиры в целом.
Для такого стиля вполне подойдёт небольшая площадь в 30 кв.м.
Для такого стиля характерно использовать металл, пластик и, конечно же, стекло. К тому же, данные материалы всегда визуально увеличивают пространство. Стилю хай – тек присуще использовать серые и светлые оттенки в отделке квартиры. А также оранжево – черные, серебристые, бежевые и сливочно – белые. Их умелое сочетание вовсе не сделает вашу квартиру мрачной или тесной, а, наоборот, стильной и просторной.
В такой квартире – студии будьте внимательны с освещением. Оно не должно быть навязчивым, но должно быть верно подобранным. Чтобы правильно оформить свет, многие дизайнеры рекомендуют использовать точечные светильники на потолке и, например, в нишах, а также различные декоративные лампы.
Также не забывайте о правильной расстановке мебели и о том, что для данного стиля характерна функциональность и практичность во всем.
Любая мебель должна иметь свое назначение. Очень удачно будет смотреться различная мебель с металлическими вставками, например, выгодным и интересным решением в интерьере может стать диван – кровать, который будет занимать мало пространства, но будет очень функциональным.
Зонирование в квартире – студии вы можете сделать с помощью декоративных стеклянных перегородок или же, оставить открытое пространство, разделив все функциональные зоны с помощью разной отделки пола и стен.
Стиль хай – тек подойдет не только для одиноких, уверенных в себе личностей, но также и для молодой пары.
В стиле «Лофт»
Такой стиль вполне можно применить в небольшой квартире.
Но очень важно то, что в ней вы можете разместить все самое необходимо для комфортной жизни. Стиль лофт очень популярен в последние годы, потому что является не только современным и модным, но и функциональным.
Классический вариант оформления такого стиля в небольшой квартире предполагает наличие открытого пространства без лишних перегородок. Отдельной комнатой будет только санузел. При этом кухню от гостиной зоны вы можете отделить, например, с помощью барной стойки или небольшого декоративного камина. Для данного стиля характерно оформление кирпичом. Ваше рабочее место вы можете отделить с помощью раздвижного комода.
Для данного стиля лучше использовать плитку с различными принтами и различные деревянные поверхности. В данном стиле предпочтение стоит отдавать различной функциональной мебели. Гостиная, совмещенная со спальней, может быть дополнена большим диваном, который при необходимости вы можете разложить в кровать.
Что же касается санузла в такой квартире, то его также необходимо оформлять в этом же стиле. Например, можно выбрать плитку, которая будет имитировать состаренную доску. Тумбу для раковины и обрамление зеркала лучше выбрать из дерева. Душевую кабину можно разместить из стекла или же выбрать вариант со шторкой. Различные детали можно выбрать в бронзовых оттенках.
Минимализм
Чтобы создать квартиру в таком стиле, достаточно использовать светлые оттенки, которые добавят больше простора, предпочтение также стоит отдавать простым формам и негромоздкой, функциональной и раскладной мебели.
Для оформления небольшой квартиры лучше не использовать лишние перегородки, так как лучшим вариантом в стиле минимализма станет свободное пространство. Обставить такую квартиру лучше минимумом мебели. Зонирование следует выполнять с помощью пола или стен.
Говоря о квартире в стиле минимализм, можно представить следующее: заходя в квартиру, вы можете оформить небольшой коридор, по вашему желанию вы можете отделить его с помощью двери с зеркалом или же арки. Далее вы попадете непосредственно в студийное пространство, где будет находиться кухня и гостиная. Выход в санузел будет из коридора или прихожей.
Для оформления квартиры в таком стиле предпочтение отдавайте белым, сливочным и песочным оттенкам. Можно умело сочетать кремовые оттенки с шоколадными или же выбирать контрастную мебель.
В классическом стиле
В таком стиле вполне уместно использовать современную технику, хоть он и ассоциируется у нас с чем – то исключительно пышным и роскошным.
Классический стиль, однозначно, выйдет вам в копеечку, но зато будет поистине роскошным и не оставит ни одного гостя равнодушным, даже в маленьких апартаментах. Для данного стиля характерно использовать исключительно натуральные материалы в отделке, а также изысканные обои и текстиль.
Преимущественно использовать различные светлые, теплые и золотые оттенки в отделке стен. Можно размещать зеркала не только в прихожей, но и непосредственно в гостиной. Оформляя непосредственно кухню, не забывайте, что все металлические элементы должны быть стилизованы под классику.
Отделить кухонную и гостиную зоны можно не только с помощью зонирования пола и стен, но также и с помощью декоративного камина в классическом стиле или другой мебели.
Дополнить классический интерьер вы можете с помощью различного рода ваз с роскошными розами, светильников или подсвечников. Вы можете расставить их непосредственно в гостиной зоне, где они будут очень удачно сочетаться с интерьером.
Чтобы такой классический стиль соответствовал всем требованиям современной жизни, необходимо помнить, что вам нужно умело сочетать практичность и изысканность.
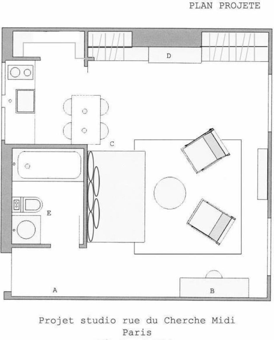
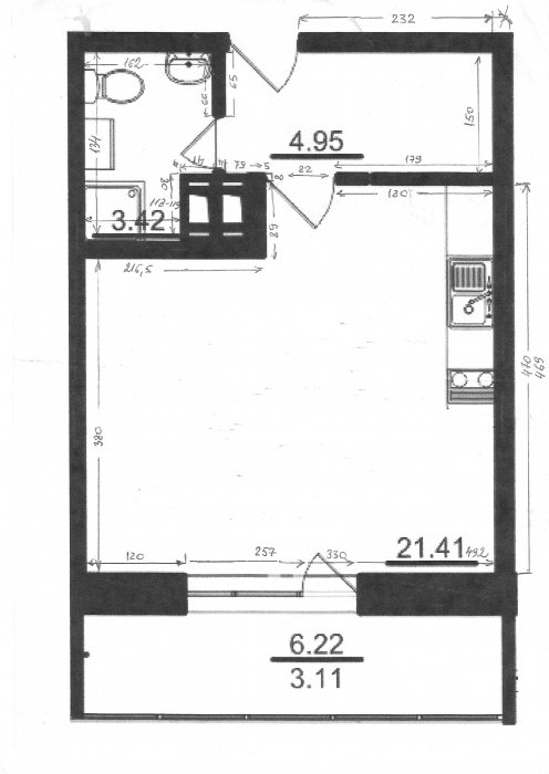
Дизайн квартиры-студии 30 квадратных метров — INMYROOM
Кажется невозможным создание на такой площади однокомнатной квартиры пространства, зонированного на функциональные области для отдыха, принятия гостей, приготовления пищи, работы, таким образом, чтобы в итоге интерьер был уютным и не захламленным.
Однако, можно создать впечатляющий дизайн интерьера однокомнатной квартиры 30 кв м, если соблюдать принципы правильной организации пространства, оформления функциональных зон, удачных приемов визуальной коррекции и отделки.
Идеи удачной планировки квартиры-студии 30 квадратных метров
Создание однокомнатной квартиры-студии из обычной малометражки с отдельной неудобной и маленькой кухней поможет воплотить в жизнь многофункциональный дизайн-проект, стильный и удобный для жизни. Перепланировка – это серьезный комплекс строительных работ, требующий много времени, затрат труда и финансов. Если существует уверенность в том, что это идеальный вариант на пути к созданию комфортной атмосферы в квартире, тогда можно смело приступать к воплощению проекта.
Чаще всего перепланировка однокомнатной квартиры 30 кв м осуществляется путем сноса перегородки между кухней и жилой комнатой, когда создается единое пространство. Если есть лоджия и кладовка, их также можно объединить с общей комнатой.
Во время планировки можно воспользоваться услугами дизайнера, или обойтись своими силами, но, в обоих случаях, следует учитывать некоторые нюансы, которые повлияют на нее:
- Общая площадь квартиры и ее форма. Наиболее распространенной формой студии является квадрат, которая является наиболее удобной с точки зрения обстановки мебелью и зонирования;
- Количество жильцов;
- Расположение коммуникаций;
- Количество дверных и оконных проемов.
Планировка квартиры-студии 30 кв м бывает открытой, когда пространство всей квартиры создается единым, кроме санузла, а также разграниченной различными перегородками – шторами, ширмами, предметами мебели. Зонирование функциональных областей при открытой планировке также существует, как и при явном разграничении ширмами, только выражается это разными приемами способов отделки, материалов. Примеры удачной планировки обоих вариантов представлены на фото ниже.
Елена Остапова: публикация интерьера в журнале ДОМ & интерьер, июнь 2014г
Варианты ремонта маленькой однокомнатной квартиры
Перед началом отделки квартиры-студии 30 кв м следует определить функциональные зоны помещения в соответствии с положением линий коммуникаций, оконных и дверных проемов.
Таким образом, в зависимости от личных предпочтений хозяев квартиры, выделяются зоны: приготовления и приема пищи, отдыха и сна, приема гостей, рабочая зона. Санузел в однокомнатной квартире 30 кв м обычно совмещенный, отделен капитальной стеной.
Визуальное разграничение функциональных зон во время ремонта осуществляется с помощью использования различных отделочных материалов. Это выражается как в отделке потолка, пола, так и настенной поверхности.
Способы отделки при зонировании:
Функциональная зона: Отдых и сон
Второй вариант – изготовление подиума для кровати из гипсокартона.
Обои, покраска, штукатурка стен, ламинат, переходящий на потолок. Оттенок варьируется в зависимости от цвета мебели для сна.
Аналогичный материал тому, что используется в остальном пространстве;Ламинат;
Многоуровневый потолок.
Функциональная зона: Приготовление пищи
Другой вариант – изготовление подиума для кухонного гарнитура из гипсокартона.
Керамическая плитка;
Штукатурка, Покраска;
Комбинирование обоев и плитки.
Многоуровневый потолок с собственным освещением.
Функциональная зона: Обеденная зона
Керамическая плитка или аналогичный материал, используемый в остальном пространстве
Штукатурка в столовой зоне;Панно;
Комбинирование обоев
Аналогичный остальному пространству.
Функциональная зона: Прием гостей
Линолеум;
Паркет;
Использование текстиля на полу.
Обои;
Штукатурка;
Ламинат;
Декоративный камень или кирпич;
Покраска
Натяжной;
Покраска.
Рабочее пространство обычно не выделяется с помощью отделки, но может ограничиваться предметами мебели или аксессуарами. Если она располагается на лоджии, объединенной с жилой комнатой, необходимо во время ремонта использовать утепляющие материалы. Прихожая оформляется износостойкими, влагоустойчивыми материалами – камнем, плиткой, покраской, штукатуркой.
Способы организации пространства
Дизайн квартиры 30 кв метров подразумевает правильную организацию пространства, которое заключается в эргономичном расположении функциональных зон. Их разделение можно осуществить как визуально, так и практически. Дизайн студии 30 кв предполагает зонирование следующими способами:
Должна использоваться легкая, негромоздкая мебель для разделения различных зон. Обычно используются шкафы, высокие тумбы – они позволяют выделить личное пространство каждого члена семьи. Кухонную зону от жилой обычно разделяет барная стойка. С помощью стеллажей отграничивается спальня: такая перегородка не препятствует проникновению естественного освещения, но одновременно создает определенную границу.
Идеальный вариант для создания отдельной спальной зоны в одном помещении с кухней, гостиной и столовой. Шторы навешиваются вокруг кровати на некотором расстоянии от нее. Днем их можно раздвинуть, чтобы комната визуально казалась больше, а ночью, или во время приема гостей, их задвигают, скрывая кровать от посторонних глаз.
Это распространенный прием при создании дизайна интерьера однокомнатной квартиры.
- Переносные легкие перегородки
Ширмы, изготовленные из легких материалов, позволяют создавать границу там, где захочется.
- Естественные перегородки
Если в квартире была лоджия, но во время перепланировки ее объединили с жилой комнатой, оставшаяся часть стены может послужить перегородкой для рабочего места, обустроенного на месте бывшего балкона. Бывший подоконник можно переоборудовать в барную стойку.
Рекомендации: дизайнер, руководитель студии «Уютная Квартира» Наталья Преображенская
Обустройство спального места
Спальное место может быть обустроено с использованием обычной кровати или раскладного дивана. Последний вариант идеален для квартиры-студии, имеющей прямоугольную форму, благодаря чему комната оказывается узкой для установки обычной кровати. Диван-трансформер, помимо того, что экономит пространство в студии 30 м2, выполняет две функции – места для сна и отдыха, а также для приема гостей.
Такое спальное место нет необходимости специально зонировать, закрывать ширмами или шторами.
Если квартира с высокими потолками, достигающими 3 метров, спальное место можно обустроить под потолком. Такая организация места экономит пространство внизу, оставляя больше возможностей для дизайна квартиры студии 30 кв м.
Рабочая зона
Если форма комнаты-студии неправильная, имеет ниши, их можно использовать для организации рабочего места. Рабочий компьютер с легкостью можно разместить на телевизионной подставке, если она очень длинная. Если комната узкая и длинная, хорошим решением станет установка встроенной системы хранения с раздвижными дверями вдоль одной из стен, за одной из которых будет располагаться рабочий стол с ноутбуком. Это очень удобно, когда нет необходимости им пользоваться – его просто незаметно. Но все же самым лучшим местом для расположения рабочей зоны является утепленная лоджия, объединенная с квартирой-студией.
Обустройство кухни
Дизайн кухни-гостиной в квартире студии 30 кв м должен соответствовать общему направлению стилистики интерьера квартиры, но, одновременно с этим, выделяться как особенная зона.
В жилом пространстве кухня может быть отделена лишь барной стойкой или обеденным столом. Когда нет возможности во время перепланировки квартиры 30 кв м снести стену, поскольку она несущая, приходится оставлять кухню как обособленное помещение. Остается выход – расширить проем до размера стены, тогда получится, что кухня будет обращена в общую комнату. Для зонирования можно установить легкие раздвижные двери.
Оформление ванной
Ванная комната в однокомнатной квартире-студии 30 кв м обычно совмещенная с санузлом. Это единственная комната в квартире, которая должна быть обособлена. Дизайн ванной комнаты зависит от вкусов владельца квартиры, но рекомендуется использовать компактную сантехнику и мебель совместно с хорошим освещением.
Дизайн: Альбина Шорина и Георгий Козлов
Мебель для квартиры-студии
Для квартиры площадью 30 кв метров мебель должна быть практичная, и, по возможности, многофункциональная. В обеденной зоне это может быть раскладной стол, барная стойка, которые занимают пространство по-минимуму.
Журнальный стол-трансформер в гостиной при необходимости используется минимальным количеством людей, а когда гостей много, он становится обеденным или фуршетным. В гостиной также используется диван-трансформер, который поможет разместить гостей для ночевки, а вместо кресел рекомендуется установить небольшие мягкие пуфы.
Кровать, как и диван, лучше всего приобретать с подъемным механизмом, это поможет заменить систему хранения. Вместо использования шкафов для одежды можно из лоджии, присоединенной к общей комнате, обустроить гардеробную. Шкафы, размещенные в маленькой однокомнатной квартире 30 кв м, должны быть высокими и узкими, чтобы не скрадывать лишнее пространство. Дизайн однокомнатной квартиры 30 кв м предполагает практичное использование любого свободного места. Так, место под подоконниками можно использовать для устройства системы хранения, мини-бара, стеллажей и полочек для книг и прочих мелочей.
Приемы коррекции пространства с помощью цвета
Маленькое помещение необходимо визуально корректировать.
Поэтому, дизайн квартиры 30 кв включает в себя некоторые приемы для зрительного увеличения пространства с помощью цветовой палитры:
- Использование натуральных материалов с естественными оттенками поможет сделать комнату просторнее, добавить свежести в атмосферу. Это касается обустройства квартиры мебелью из натурального дерева, использования дерева в отделке.
- Скандинавский стиль поможет скорректировать пространство. Характерные для этого стиля белые, светлые оттенки внесут в помещение легкость. Контрастные акценты в виде предметов мебели, аксессуаров или декора отвлекут от границ комнаты, расширив их.
- Не следует акцентировать цветом сразу несколько зон – это внесет в интерьер хаотичность. Обычно акцентируется гостевая зона яркой панелью на стене, где расположен телевизор, или ярким ковром по центру гостиной.
Большое количество естественного освещения и наличие комнатного растения всегда оживляет интерьер маленькой квартиры.
Фото реальных проектов
При условии правильно организованного пространства, создания эргономичной обстановки, в маленькой квартире 30 кв метров можно создать стильный интерьер без ущерба для любой из функциональных зон.
Пример реализованного проекта дизайна квартиры 35 кв м.
стили, мебель, кухня, зонирование, с балконом, освещение, проекты (фото)
Как правильно спланировать дизайн квартиры-студии 30 кв. м. На какие зоны разделить помещение. Основные тренды оформления квартиры 30 кв. м. Как выбрать стиль интерьера. Фотогалерея.
Небольшие квартиры, до 30 кв. м, пользуются большой популярностью на рынке недвижимости. В планировке небольшого пространства продумывают все, чтобы разумно использовать каждый сантиметр, сделать помещение функциональным и эстетически привлекательным. Именно поэтому подобное жилье называют смарт-квартира, «smart» в переводе с английского «умный». Рассмотрим, как правильно сделать дизайн квартиры студии 30 кв., на чем необходимо акцентировать внимание.
Топ-5 новых трендов в дизайне квартиры-студии 30 кв. м
Планировочное решение, расположение мебели, технических узлов зависит от ряда факторов. Среди них:
- геометрия квартиры: длинная, квадратная, прямоугольная;
- степень естественной освещенности, количество окон;
- расположения коммуникационных выводов.

Необходимо учитывать, что канализационные каналы в многоквартирных домах не рекомендуют переносить, особенно в санузле.
В процессе планировки небольшого пространства важно определиться с приоритетами: будет ли установлена полноценная двуспальная кровать, габаритная мебель, на какие зоны предполагается разделить помещение, нужен ли кабинет, детская часть. Разумеется, расстановка приоритетов зависит и от состава семьи. Чаще всего небольшие квартиры приобретают или молодые люди, которые только начинают свой карьерный путь, или семьи, которые предпочли купить квартиру как альтернативу аренде.
Если взглянуть на фото дизайна квартиры студии 30 кв. м, можно заметить, что существуют определенные тренды планировки помещения.
Мебель-трансформер
Поскольку помещение небольшое, а нужно разместить нужно все функциональные зоны, используют мебель, которую можно трансформировать, временно спрятать.
Привычные, еще советских времен, трансформеры — диван-кровать, стол-книжка, кресло-кровать — вполне вписываются в смарт-квартиру.
Спальное место кровати с помощью подъемного механизма в дневное время можно спрятать в стенке, замаскировать под шкаф с полочками. Пользуются популярностью детские уголки, которые совмещают в себе функции кровати и рабочего стола. Дополнительное место для сна, к примеру, на случай приезда гостей, получается, если приобрести диван, который трансформируется в двухъярусную кровать.
Откидной столик вполне можно замаскировать под картину, висящую на стене, зеркало. Модульные конструкции специальной мягкой мебели позволяют с помощью перестановки секций видоизменять ее, превращать в двуспальную кровать или небольшой диванчик.
Подиум и второй ярус
Другой вариант, как правильно функционально организовать пространство, — сделать второй ярус. Понятно, что такое дизайнерское решение возможно, только если в помещении достаточно высокие потолки.
Обычно на втором ярусе устраивают спальное место, рабочий кабинет.
В случае, когда проблематично сделать второй ярус, можно получить дополнительную функциональную площадь, подняв спальное место на высоту подиума. Под этим пространством образуется достаточно объемная ниша для хранения вещей, постели. В нее устанавливают выдвижные ящики.
Оптимизация пространства в санузле
Немного расширить общее пространство можно за счет санузла. Полноценная ванна занимает довольно много места. Оптимальный вариант — установить кабинку либо лейку с трапом. За счет этого высвобождается место для стиральной машинки и хозяйственного шкафа над ней.
Использование натуральных материалов в отделке квартиры
Экологическая чистота жилья — актуальный тренд нашего времени. Даже появился новый стиль — «экологический минимализм». Суть его в том, что для отделки стараются максимально использовать натуральные материалы. К ним относятся не только дерево, натуральный камень, но и их производные.
К примеру, мебель из МДФ-панелей, покрытая натуральным шпоном. По сути, это тоже дерево, вернее, отходы после обработки древесины. Их измельчают до мелкодисперсного состояния и под давлением формируют плиты.
Одна из самых популярных текстур в современном дизайне — натуральный мрамор, в том числе его имитация в виде керамической плитки. Светильник из оникса, который пропускает свет, украсит любой интерьер.
Популярны обои из натуральных материалов, бамбука, камыша, соломки, джута, пробки. Их используют для декорирования акцентных стенок. Наиболее экологически чистые обои — бумажные, они пропускают воздух. Лучше брать двух- или трехслойные, они более долговечны.
Бытовая техника для малогабаритных квартир
Существует целая линейка бытовой техники, предназначенной для малогабаритных квартир. Это узкие стиральные, посудомоечные машинки — до 45 см, холодильники шириной 55 см, духовка высотой 45 см. Вместо полноценной варочной поверхности можно установить плиту с 2 или 3 конфорками.
Так освободится дополнительное место в рабочей части кухни.
Квартира-студия 30 кв. метров — выбор стиля
Начинают дизайн квартиры студии 30 кв. м с планировочных решений, расстановки мебели.
Кухонную бытовую технику, мебель нужно выбирать с учетом их габаритных размеров. Именно поэтому правильнее продумать все заранее.
Далее необходимо определиться со стилистическим оформлением помещения. Для небольших помещений больше подходит минимализм, его отдельные направления, эклектические стили. Классика теряет свое «звучание» в небольшом пространстве. Рассмотрим наиболее популярные современные стили дизайна.
Джапанди
Данная стилистика появилась относительно недавно, в контексте тренда на экологическую чистоту жилья. Джапанди — смешение японского и скандинавского минимализма. Подобное сочетание отлично смотрится в небольшой квартире.
От скандинавского минимализм джапанди унаследовал светлые, в основном белые, стены и потолок, текстуры дерева, натурального камня.
Японская стилистика тоже тяготеет к использованию в интерьере натуральных отделочных материалов, дерева, бамбука, обоев из природных материалов. Основная цветовая гамма — оттенки коричневого, бежевого, приглушенного зеленого.
Особенности стилей удачно накладываются друг на друга. На фоне белых стен, потолка, пола с текстурой дерева прекрасно смотрится японская мебель в коричневых тонах. Вписываются в интерьер светильники в виде японских фонариков, складные ширмы из тонкого резного дерева, бамбука.
Лофт
Элементы натуралистического минимализма и классика сочетаются в лофте, поэтому он относится к категории эклектической стилистики. В идеале, лофт подходит больше для просторных помещений с высокими потолками, но его творчески переработали и адаптировали дизайнеры для небольших помещений.
Эксклюзивность, особое очарование стиля в его обаятельной противоречивости. Основные текстуры для стен в лофте — бетон, кирпичная кладка, необработанная штукатурка.
На ремонте можно немного сэкономить, ведь в данной стилистике приветствуется строительная небрежность. Водопроводные, отопительные коммуникации, вентканалы, электропроводку можно оставить открытыми, не прятать в стены.
На фоне промышленных текстур, бетона, кирпичной кладки в интерьере может стоять диван в классическом стиле — на резных ножках с куртуазной обивкой из бархатистых тканей, с каретной стяжкой. Может висеть зеркало, классическая гравюра, картина, обрамленная резной золоченой рамкой.
Хай-тек
«Высокие технологии», так переводится название стиля, полностью соответствуют своему названию. Это урбанистическое направление, поэтому основные текстуры — стекло, металлические хромированные элементы, композитные материалы.
Хай-тек не терпит ничего лишнего, только функционально оправданные вещи, детали. Интерьер в этим стиле выглядит как жилое помещение космической базы людей будущего. Основная цветовая гамма: оттенки серого, бежевого, белый, черный цвет.
Зачастую композиция дизайна строится по принципу контраста.
В такой интерьер вписывается хромированная бытовая техника геометрических форм, мебель с гладкими фасадами в минималистичном ключе.
Арт-деко
Стиль впитал в себя элементы классики и отдельные черты минимализма, от последнего унаследовал стремление к строгому построению пространства, геометрии форм. С другой стороны, приветствуется декор, характерный для классики: отделка интерьера зеркальными, стеклянными вставками с фацетом в серебренных, позолоченных рамках, текстура полированного мрамора, оникса, дорогих натуральных отделочных материалов с декорами в виде инкрустаций, резьбой вписывается в интерьер в стиле арт-деко.
Помещение должно быть наполнено духом роскоши. Интересна цветовая композиция дизайна — используют в основном контрастный принцип, сочетание черного цвета с белым, позолотой, шоколадного с бежевым. Для текстильного оформления используют и яркие цвета — в основном бордового, лилового спектра.
Стиль арт-деко подойдет для дизайна квартиры студии 30 кв. м прямоугольной формы. Фацетированными зеркалами можно оформить стену, ведущую в спальню, чтобы визуально трансформировать пространственное восприятие, расширить его.
Домашний стиль
Порою небольшие квартиры приобретают дети для пожилых родителей, чтобы они были ближе к ним. Не все зрелые люди — поклонники минимализма, им больше нравится комфорт и уют. Именно такой атмосферы можно достичь, если сделать дизайн в стиле прованс или шебби-шик.
Основная цветовая гамма: пастельные тона зеленого, фиолетового, розового цвета, оттенки бежевого, белый цвет. Стены, потолок обычно белые. Мебель на кухню выбирают в классическом стиле. Доминирующие текстуры: дерево, медь, латунь, ротанг, плетение из лозы. Текстиль играет важную роль в декоре интерьера, приветствуются разного рода занавески, чехлы на диване, стульях, скатерть, салфетки. В целом все эти элементы должны создать мягкую, уютную обстановку.
Зонирование квартиры-студии 30 кв.м — советы экспертов
Если взглянуть на фото дизайна квартиры-студии до 30 кв. м, обращает на себя внимание тот факт, что традиционный для них прием — зонирование общего пространства.
Традиционное распределение на зоны:
- прихожая;
- гостиная;
- кухня, обеденная зона;
- спальня.
Если в семьи есть дети, нужно тоже выделить им место в квартире. Зоны выделяют цветом, текстурой стен, пола. Условно разделяют мебелью, барной стойкой, обеденным столом, диваном, мягким уголком.
Дизайн интерьера квартиры студии 30 кв. м, деление ее на зоны можно сделать с помощью разного рода перегородок. Это могут быть:
- конструкции из ГКЛ;
- стеклянные, витражные перегородки;
- раздвижные системы типа шкафа-купе;
- системы типа «гармошка»;
- раздвижные шторы.

Сейчас модно использовать в качестве зонирующей перегородки «живую» стену — стеллаж с комнатными растениями. Популярны ажурные металлические конструкции.
В студиях нет стен между прихожей, кухней, гостиной, но по желанию спальню можно отделить. Для кухни и гостиной лучше отвести место у окна, если оно одно в комнате. Обычно их располагают рядом либо друг напротив друга. Между ними может находиться обеденная зона с небольшим столиком, барной стойкой.
Рабочий уголок лучше сделать в укромном уголке спальни, гостиной.
Квартира-студия 30 кв. м с балконом
Для небольшой комнаты-студии наличие балкона или лоджии — просто находка, т. к. за счет их площади можно увеличить полезное пространство. Назначение этой площади зависит от того, какая зона располагается рядом, личных предпочтений.
Как правило, стена между балконом и комнатой несущая, поэтому полностью ее демонтировать не удастся. Убрать можно только оконный блок и дверь.
Необходимо установить на дополнительной площади электрический теплый пол либо обогреватель. Нельзя переносить на балкон радиатор центрального отопления.
На балконе, лоджии обустраивают:
- рабочий уголок;
- выносят туда холодильник, оборудуют хозяйственный шкаф;
- оставшуюся часть подоконника переоборудуют в барную стойку, обеденный стол;
- делают уголок отдыха.
Не рекомендуют делать на балконе детскую зону — с точки зрения безопасности ребенка.
Фото-идеи дизайна квартиры-студии 30 кв. м
Небольшая квартира 30 кв. м, возможно, не позволяет реализовать все «хотелки», но все же в ней можно разместить все функциональные зоны, оформить их красиво, эстетически привлекательно. Достаточно взглянуть на фото подобных интерьеров.
дизайн, квартира студияДизайн интерьера квартиры студии 30 кв.
м в БерлинеМолодой берлинский дизайнер оформила студию, наполненную немногословной, но предельно функциональной мебелью в стилистике Reuse&Recycle.
Эту небольшую квартиру в Берлине проектировали под недолгосрочную аренду, поэтому в ней многое от логики оформления комнаты в отеле.
Однако дизайн квартиры-студии 30 кв. м содержит и остроумные идеи, как по-максимуму распорядиться пространством, не загромождая его лишними предметами интерьера. Их-то мы и рассмотрим поподробнее, с тем, чтобы порекомендовать для небольшого молодежного творческого жилья.
На фото:
Эти небольшие апартаменты в Берлине — подобие мини-гостиницы с забавной концепцией и «говорящим» названием Plus One. Идея в том, что квартиру-студию можно снять в аренду на любое количество дней, но на этом сходство с отелем заканчивается.
Здесь все нацелено на то, чтобы проживающий стал на этот срок настоящим жителем Берлина, отсюда и название «Плюс Один»: помимо квадратных метров арендатору достанутся «друзья-соседи», которые в свое свободное время готовы показать ему местные аутентичные места — от кафе до галерей и всячески помочь проникнуться духом места.
Информация об объекте:
Место: Берлин
Метраж: 30 кв. м
Год: 2012
Архитектор: Паола Багна (Paola Bagna) spamroom.net
Фото: Ringo Paulusch
ringo-paulusch.info
На фото: Паола Багна, архитектор
В апартаментах оригинально выглядит не только концепция, но и сам интерьер квартиры-студии 30 кв. м. Она расположена в квартале Нойкельн, не слишком туристическом, но очень творческом берлинском районе, и дизайнер Паола Багна создала интерьер в модной здесь стилистике: простой, немногословной, экологичной, с легким вкраплением актуального индустриального дизайна. Чтобы максимально использовать имеющиеся 30 кв. метров и сделать интерьер более гибким и оригинальным, она сама разработала каждый предмет обстановки. Получилось довольно остроумно, и отдельные идеи могут оказаться подходящими не только для мини-гостиницы, но и для квартиры или комнаты.
Планировка предельно простая и благодарная: прямоугольник квартиры с небольшим отдельным входным коридором.
Вдоль всей внешней стены тянется балкон, который дизайнер тоже задействовала в своем проекте. Саму же квартиру она постаралась оставить предельно цельной, обособив только санузел. Центр студии занимает большая кровать, справа от нее большой многофункциональный шкаф со встроенной в него кухней. А чуть увеличенный подоконник представляет собой стол.
Каждый предмет обстановки в проекте Plus One многофункционален. Вот, казалось бы, просто кровать, но нет, у нее гораздо больше функций и возможностей. Обратите внимание на полочку слева от кровати. Можно положить книжку, когда читаешь, а можно использовать ее как барную стойку, ведь рядом кухня и стоят два барных стула. Чем не место для завтрака? Справа у кровати выдвигается дополнительное третье спальное место, что удобно, к примеру, в случае аренды квартиры семьей с ребенком. Но спальное место разделено на три самостоятельных блока, которые можно выкатывать по отдельности и они прекрасно справляются с ролью пуфов, на которых можно сидеть и чуть ли не принимать гостей.
Большой шкаф тоже многофункционален: это и система хранения и полноценная кухня, где есть все от посудомоечной машины до электроплитки. Он развернут одновременно и в прихожую, где играет роль гардероба, и в студию.
Шкаф — небольшой шедевр в стиле recycle: он собран из ДСП и старого, отжившего своё дерева, дверок, паркета и проч. Все было тщательно очищенно, восстановлено и собрано в яркий и выразительный печворк из древесины.
Сочетание старых и новых материалов — один из свежих европейских трендов, в дизайне Паолы получил еще «эко»-оттенок, многие материалы переживают второе рождение: дерево, дверные ручки, плитка.
Стол у окна можно использовать в качестве рабочего, но если вечер теплый, то за ним запросто можно накрыть ужин на небольшую компанию. Правда, части гостей придется сидеть на балконе.
Светильники в апартаментах сделаны на заказ по рисункам Паолы из латунных труб: просто и актуально, ведь сейчас в моде «индустриальные акценты».
«Лампа Ильича» в современном исполнении дает правильный направленный свет, благодаря напылению в верхней части стеклянной колбы.
Санузел на территории квартиры-студии 30 кв. м дизайнер «выкроила» достаточно просторный, оформив его сдержанно и практично.
Проект студии 30 кв.м. со спальней для молодой пары — Идеи ремонта
Всем привет!Выкладываем на рассмотрение дизайн проект небольшой квартиры студии. Площадь студии всего 30 кв.м. На самом деле площадь еще меньше, но мы присоединили балкон, убрав полностью стену между …
Выкладываем на рассмотрение дизайн проект небольшой квартиры студии. Площадь студии всего 30 кв.м. На самом деле площадь еще меньше, но мы присоединили балкон, убрав полностью стену между комнатой и гостиной.
Основная задача была следующая.
1. Нужна полноценная спальня, а не просто ниша с кроватью.
2. Нужна удобная и не крохотная кухня.
3. Достаточно много мест для хранения кучи вещей.
Делали мы эту квартирку для молодой симпатичной семейной пары.
Чтобы максимально подробно описать проект, мы для каждой комнаты сделали карту отделки с описанием мебели, светильников и отдел. материалов.
Для начала, вот такая планировка у нас получилась.
Эта планировка достаточно распространена сейчас, таких студий с коридорной системой сейчас очень много. Отличаются такие студии как правило только длинной и шириной гостиной.
Мы присоединили балкон и разделили гостиную на спальню и кухню.
КУХНЯ-ГОСТИНАЯ
С кухней возникла проблема со сливом воды, поэтому под раковиной пришлось поставить насос.
Почему стоило перенести кухню дальше от стояков с водой?
Мы сделали это, потому что во первых там где хозяйка будет готовить нужно много свободного места, а это свободное место в нашем случае еще и является проходным между прихожей и спальней.
Плюс для дивана нужно достаточно много места. Небольшой столик у дивана выполняет функцию обеденного стола.
Между кухней-гостиной и спальней у нас раздвижная дверка. Чтобы в гостиной не было мрачно, мы сделали витражный элемент над стеной и полупрозрачную раздвижную дверку.
Кухня у нас из ИКЕА МЕТОД. фасады МЕТОД/БУДБИН. Холодильник по дизайну выбран не случайно. Холодильник Smeg FAB28RX
Вообще в этом проекте много мебели взято из ИКЕА. Бюджет на будущий ремонт и покупку мебели был ограничен.
Веселые стульчики — Marais Color столик MetalFrame тумба ИКЕА ХЕМНЭС лампа тоже из икеа.
На стене фотообои Mr.Perswall Destination P111301-8. Не дорогое решение но комната выглядит интересно. В качестве декора использован обычный декоративный клинкерный кирпичик из крашеного бетона по цене 1400р за кв.м.
Не поленились для каждого помещения сделать карту отделки.
В прихожей в основном использован искусственный камень под белый кирпичик. Мы использовали кирпичик, так как он не дорогой и практичный в отделке.
Из прихожей попадаем в ванную комнату.
Хотя площадь ванной и позволяла установить ванную чашу, но наши клиенты предпочли удобную большую душевую кабину. Сантехнику «раскидали» по стенам и в центре осталось свободное место.
Мы не стали выкладывать плитку от пола до потолка по всем стенам. Нам кажется что так ванна выглядит интересней и не так нагружена. Плюс это не большая экономия на материалах и отделочных работах.
Сантехнику мы использовали не дорогую. Плитка Kerama Marazzi по 1000 р за кв.м. Смесители традиционно ставим Ghroe или iddis. Тумба под раковиной ИКЕА
Как мы уже говорили в начале, мы присоединили балкон и часть общей комнаты. Спальня получилась 10 кв.м. За счет большого окна спальня кажется еще больше. Мы честно предупредили хозяина квартиры, что согласовать такую планировку официально будет очень сложно. Поэтому планировка данной квартиры не согласовывалась и паспорт БТИ отличается от того, что получилось в проекте.
Мы пошли на это сознательно, так как нашим заказчикам очень хотелось иметь полноценную спальню а не какую нибудь нишу.
Чтобы в спальне к кровати был нормальный доступ. Радиатор отопления будет крепиться на стену между спальней и гостиной. На эскизах его нет.
В спальне так же использован не дорогой кирпич, покраска и немного декоративной штукатурки.
Самая дорогая вещь во всей квартиры — это раздвижная конструкция из стекла.
Комод Thimon основное покрытие декор. краска Pokerlax
Чтобы не грузить помещения, обошлись без тяжелых люстр. Свет очень простой и построен на обычных не дорогих точечных светильниках.
Если есть какие то вопросы по отделке или дизайну ПИШИТЕ в комментариях.
С радостью ответим!
Пять забавных и сказочных квартир-студий до 30 кв.м.
Нравится архитектура и дизайн интерьера? Следуйте за нами…
Спасибо.
Вы подписаны.Пять современных квартир-студий, от забавных до сказочных, демонстрируют разнообразие цветовых палитр и творческих планировок, чтобы дополнить и максимально увеличить небольшие пространства. Дизайн квартиры-студии номер один — это утонченная обитель в бело-коричневых тонах со смелым дизайном стеклянной ванной комнаты и встроенными блоками, которые определяют каждую зону в открытой планировке.Строгий черно-белый, бледно-серый и природные элементы составляют четкие интерьеры квартир в скандинавском стиле два и три. Взрыв цвета и ботанические интродукции формируют четвертую часть, а аквамариновые и желтые акценты украшают нашу последнюю остановку. Подробные планы этажей разбросаны повсюду для справки.

Встроенные шкафы расположены вдоль обоих концов кровати, обеспечивая львиную долю пространства для хранения в квартире.



Рекомендуемое чтение: Эффективные планировки для очень маленьких домов площадью менее 30 кв. м
Вам понравилась эта статья?
Поделитесь им в любой из перечисленных ниже социальных сетей, чтобы отдать нам свой голос.Ваш отзыв помогает нам совершенствоваться.
Game Меняя идеи экономии пространства в небольших студиях площадью менее 30 кв.м.
Комфортная жизнь на площади менее 30 кв.м требует немного творческого мышления, и в этой паре дизайнов студий есть идеи экономии места, которые гарантированно вдохновят. Каждый из этих двух уникальных небольших домашних интерьеров включает в себя мебель, сделанную на заказ, которая меняет правила игры, что позволяет использовать планировку пола совершенно по-новому.
Дизайн дома номер один представляет собой сделанный на заказ куб из мебели для гостиной и спальни в одном — без обычного дивана-кровати в поле зрения — и места для хранения достаточно, но его не видно.Наш второй дизайн дома включает в себя множество шкафов, в которых скрыта целая ванная комната, а встроенный книжный шкаф обрамляет многоуровневую спальню с уникальным домашним рабочим пространством.
Визуализатор: Бартош Ковальчик
Наш первый представленный дом — это квартира-студия площадью 29 квадратных метров, принадлежащая молодому дизайнеру, расположенная в Прушкове, Польша. Несмотря на компактные пропорции, минималистская гостиная четко зонирована за счет реализации кубических объемов и контрастного цвета.
Гостиная «куб» изготовлена на заказ. Дизайн объединяет сделанный на заказ L-образный диван с большим количеством скрытых мест для хранения вокруг него и под ним, а также книжный шкаф внутри одного конца.
Современный журнальный столик завершает планировку квадратной гостиной.
Часть дивана имеет такие же опоры из стального каркаса, чтобы создать индивидуальное единство.
Мягкий серый ковер устилает пол вокруг квадратного журнального столика, плотно прилегая к дивану.
Выдвижной ящик под диваном скрывает раскладушку-раскладушку. Кровать выдвигается в пределах удобной досягаемости от книжного шкафа, что позволяет очень легко сделать выбор для чтения перед сном.
Благодаря съемной конструкции этот многофункциональный светильник можно снять с потолка в кухонной столовой и превратить в торшер для чтения у кровати.
Находясь в кухне-столовой, уникальная лампа подвешивается к потолочной стойке, освещая обеденный полуостров.
Современный стул с черным акцентом по обеим сторонам обеденной скамьи под дерево.
Большие окна наполняют небольшую гостиную ярким естественным светом. Домашнее рабочее место обустроено рядом со стеклом.
Полностью белая кухня оснащена скоординированной белой встроенной духовкой, дополняющей обтекаемую эстетику.
Контрастная отделка небольшого обеденного стола помогает четко разделить открытую концепцию.
Обеденный полуостров на самом деле является подвижным модулем, который может стать отдельно стоящим столом/островом.Как видно здесь, модуль также можно соединить со столом, чтобы сделать стол гораздо большего размера, за которым могут разместиться до восьми человек за ужином.
В этой квадратной конфигурации обеденный и письменный стол образуют двойное рабочее пространство для совместной работы.
Скамья для прихожей из цельного дерева придает гладкому белому коридору текстурный деревенский оттенок.
Стена для хранения в прихожей скрыта за непритязательными фасадами шкафов без ручек.
Стенка для хранения включает в себя выдвижной объем, в котором размещается чистящее оборудование и обувь.
Другая панель открывается, открывая гладильную доску.
Последняя дверь дома ведет в ванную.
Атмосферное освещение подчеркивает текстурированную темно-серую отделку стен и сочетается с встроенной раковиной в ванной комнате.
Душевая находится в конце узкого линейного пространства.
Реечные потолочные панели визуально удлиняют помещение. В узких нишах в конце тумбы можно хранить полотенце для лица и туалетные принадлежности.
Архитектор: IR arquitectura
Наш второй домашний интерьер — это квартира-студия с особым дизайном полукруглого балкона.
Балкон является главной достопримечательностью крошечного жилого помещения. Изогнутый периметр и открытый световой люк притягивают радостные виды с верхушек деревьев и безграничный дневной свет.
Комнатные растения прекрасно себя чувствуют при обильном солнечном свете, прорастая с полок изготовленного на заказ книжного шкафа и с подставок вокруг пола.
Большой встроенный книжный шкаф образует перегородку между гостиной и спальней.
Открытые боковые полки обслуживают обе зоны и разделяют естественное освещение.
С другой стороны треугольной жилой площади расположена кухня с одной стеной, расположенная до линии потолка, чтобы максимально использовать вертикальное пространство для хранения. Лестница облегчает доступ.
Двери с деревянным каркасом закрывают балкон. Больше комнатных растений превращает лиственный вид на улицу в объятия уникального солярия.
Светильник-шар делает пространство уютным на закате.
Сетчатые экраны с белым покрытием фильтруют панораму, а сверху льется чистый солнечный свет.
Прохладный бетонный пол покрывается серой, зеленой и солнечно-желтой плиткой, когда мы подходим к прихожей, которая также является точкой доступа в спальню.
Сама кровать приподнята над уровнем нижних шкафов для хранения, что дает ей панорамный вид на квартиру через верхний объем открытых полок. Предметы интереса выстраиваются на полках, чтобы обеспечить причудливый декор с обеих сторон.
Многоуровневая планировка небольшой спальни с удобным рабочим пространством посередине, из которого открывается прекрасный вид.
Фальшпол дает эффект подъема в постель, несмотря на то, что в квартире всего один этаж. Открытая полочная перегородка бесценна для предотвращения чувства клаустрофобии в узком пространстве и для облегчения воздушного потока.
Круглый журнальный столик занимает мало места в компактном доме и достаточно легок, чтобы при необходимости его можно было перенести на балкон.
Обеденный стол прячется в кухонных шкафах до тех пор, пока он не понадобится. Стол достаточно большой, чтобы вместить двух домовладельцев, чтобы не занимать лишнее пространство.
Одна из других полноразмерных дверей кухонного шкафа на самом деле является секретной дверью в ванную. Внутри прочные полки для хранения также можно использовать как лестницу, чтобы пара могла быстро получить доступ к туалетным принадлежностям, сложенным наверху.
План этажа квартиры показывает, что раковина в ванной комнате также спрятана внутри объема кухонного шкафа, что экономит ценное пространство в крошечной душевой.
Рекомендуемое чтение: Эффективные планировки для супермаленьких домов до 30 кв.м.
Похожие сообщения:
300 кв. футов Дизайн крошечного дома 10 x 30 футов
15 декабря 2014 г.
Это крошечный дом шириной 10 футов и длиной 30 футов площадью 300 кв. футов с дополнительным пространством на чердаке. Одна из моих любимых особенностей в том, что есть лестница (не лестница) на чердак наверху.
Там достаточно места для большой двуспальной кровати, что очень удобно, если вы планируете делить пространство. Кроме того, за кроватью есть дополнительное место для хранения вещей. В этом крошечном доме есть планы на солнечные батареи мощностью 1400 Вт и систему сбора серой воды на 150 галлонов. Дополнительные функции включают в себя:
- Комбинированная стиральная машина с сушкой под лестницей.

- Дровяная печь.
- Проточный водонагреватель.
И многое другое.Пройдите весь 3D-тур ниже. Пожалуйста, наслаждайтесь, оставляйте свои мысли в комментариях и делитесь, если считаете нужным. Спасибо!
Не пропустите другие подобные крошечные дома — подпишитесь на нашу БЕСПЛАТНУЮ рассылку Tiny House Newsletter, чтобы узнать больше!
300 кв.м. футов Дизайн крошечного дома 10 x 30 футов
Изображения © К Батлер/YouTube
Изображения © К Батлер/YouTube
Видеотур: Дизайн крошечного дома площадью 300 кв. футов
Большое спасибо Кеслеру Батлеру за то, что он поделился с нами этим потрясающим дизайном крошечного дома!
Вы можете помочь нам распространить информацию, поставив «Нравится» на Facebook, используя кнопку ниже, и повторно поделившись этой историей, используя кнопки электронной почты и социальных сетей, расположенные ниже.
Каждая публикация помогает, в том числе ваша. Большое спасибо.
Если вам понравился дизайн этого крошечного дома площадью 300 кв. футов , вам обязательно ПОНРАВИТСЯ наш бесплатный ежедневный информационный бюллетень о крошечном доме и даже больше! Спасибо!
Следующие две вкладки изменяют содержимое ниже. Алекс является автором и редактором TinyHouseTalk.com и всегда бесплатного информационного бюллетеня Tiny House. Он любит исследовать крошечные дома (от юрт и автофургонов до крошечных хижин и коттеджей) и рассказывать простые истории из жизни.Мы приглашаем вас также прислать свою историю и крошечные домашние фотографии, чтобы мы могли повторно поделиться ими и вдохновить других на простую жизнь. Спасибо! Родственные План таунхауса триплекс.
Архитектурный этаж
Эти типы многосемейных домов очень хорошо подходят для инвестиционной собственности.Каждая модель имеет гараж на одну машину и доступный вариант второго этажа, который добавляет дополнительную спальню, ванную комнату и чердачное пространство. Проекты многоквартирных квартир Планы таунхаусов для узких участков Планы триплексов таунхаусов. м, 4-5 комн., 3 с/у. Как самый большой план этажа таунхауса в Majestic Gardens, этот дом устанавливает планку для 2200+ кв. Двухэтажный; Ранчо; Кейп-Код и ящик с солью; двухуровневый и двухуровневый; Береговые/прибрежные дома; Дома с узкими участками (шириной менее 30 футов) Дома с очень узкими участками (шириной менее 20 футов) Дуплексы, триплексы и таунхаусы; Доступно для инвалидов; Модели экономики; Индивидуальные планы этажей; О нас.Часто задаваемые вопросы. Дополнительная информация План Tri-Plex разработан не только с учетом функциональности плана этажа, но и с точки зрения рентабельности строительства без ущерба для общей привлекательности дома.
Наши проекты многоквартирных домов идеально подходят для тех, кто хочет максимально увеличить свое пространство и конфиденциальность при ограниченном бюджете. Пожалуйста, оставьте все полотенца на полу в ванной комнате. Лофт арт-дилера плюс шикарный таунхаус равны этому триплексу Tribeca стоимостью 10 миллионов долларов. Prominence состоит из трех этажей: Аруба, Бамама и Косумель.Посмотреть в полном размере Дуплекс План дома Таунхаус Дизайн дома 208 м2 2247 кв Etsy Планы дуплекса Чертежи Diy План строительства дома с двумя спальнями Триплекс Планы этажей Проекты Дом для людей с ограниченными возможностями 2700 Sf Новый дизайн карты дома Orice 30×40 Планы дома в Бангалоре для G 1 G 2 G 3 G 4 этажа 30×40 Это красивый дуплекс с тремя спальнями. Индивидуальные домашние дизайнеры многоквартирных домов. Домой. Также есть заднее окно… План 050M-0008: О трехэтажных планах этажей и планах многоквартирных домов Планы многоквартирных домов из 3 и 4 квартир в этой коллекции спроектированы с тремя или четырьмя отдельными жилыми зонами, разделенными этажами, стенами или оба.
Триплекс B в области ниже и нажмите «Отправить». Мы собрали действительно отличные фотографии, чтобы добавить вашу коллекцию, мы надеемся, что вы можете вдохновиться этими умными галереями. план этажа и внешний фасад и был построен по всей стране На первом этаже есть гараж на одну машину, крытое крыльцо, двухэтажный план дома с фотографиями Основные магистрали: 35th Ave NE и Lake City Way NE 1 11 10 9 8 7 6 2 4 5 3 СУЩЕСТВУЮЩИЙ УЧАСТОК ДЛЯ ДОМА Около 4-х спального триплекса-$8500!Огромный триплекс с 4-мя спальнями, 3-мя ванными комнатами, рядом с музеем и Центральным парком!Этот солнечный дом, выходящий на южную сторону, имеет большую медиа-комнату/LR на 1-м этаже с декоративным камином, деревянными полами, 2 спальнями, 2 ванными комнатами и прекрасным видом на таунхаус.Каждый этаж — это отдельная единица. ком. Иногда они бывают … План трехэтажного дома, первый этаж: На первом этаже этого триплекса есть небольшое крытое крыльцо. 5 ванных комнат, свободная планировка, 4 кухонных прибора (холодильник, плита, микроволновая печь, посудомоечная машина) НОВАЯ стиральная машина и сушилка (в блоке), пристроенный гараж и подъезд, НОВЫЙ КОВЕР, много места для хранения (дополнительное место для хранения в … Jan 8, 2016 — Планы триплекса, планы таунхауса, планы триплекса с 2 спальнями, триплекс с гаражом, Т-415 ТАУНХАУС ТАУНХАУС ТАУНХАУС ТАУНХАУС ТАУНХАУС ОПИСАНИЕ РАЙОНА Участок окружен домами на одну семью, дуплексами/триплексами и многоквартирными домами.
План дома Ch242 Чистая площадь: 1464 кв. Футов Многоквартирные планы — Дуплекс (104 плана). Как и в случае с дуплексом, если ваш квартал расположен в зонах от R20 до R40, идеальным выбором может стать триплекс. ДЕМАРЕСТ РЕЗИДЕНЦИЯ. (36) 9 долларов. Полностью благоустроенная территория и круглосуточная охрана предлагают жильцам спокойную гавань в очаровательной обстановке. На первом этаже четыре просторные спальни делят пространство с гостиной, кабинетом, гардеробной, второй ванной комнатой и туалетом. Спальни: 4.2 кровати / 2 ванны НАВЕРХУ от триплекса — это таунхаус, расположенный в округе Колумбия, почтовый индекс 44408, и в зоне посещаемости Колумбийской освобожденной деревни. Двухэтажный. 16 августа 2019 г. — Изучите доску Кэролайн Роулендс «Планы дуплексных/двойных жилых домов» на Pinterest. Наши инновационные дизайнерские решения позволяют в интерактивном режиме создавать проекты зданий, которые понравятся вашим жильцам. 8-местный триплекс с двойной гостиной, дизайн: 344DU. План коттеджа.
Получайте дополнительный доход с планом триплекс. План этажа таунхауса. Не TUFF Sheds, а планы гаражей, которые мне нравятся — у каждого есть хороший план этажа с достаточным пространством в гараже, чтобы построить магазин или вместить много места для хранения:.Таунхаусы на несколько семей Планы таунхаусов на узкие участки. Стандартные функции дома для наших прецизионных заводских домов. Балкон с видом на общий наземный бассейн триплекса. Добро пожаловать в Simplex Industries Multi-Family Благодарим вас за интерес, проявленный к Simplex Industries. Каждая из наших дуплексных планировок подходит для проживания и сдачи в аренду, или вы можете предложить арендаторам обе квартиры, если хотите. Здания выполнены в различных стилях и масштабах. 5 сан.узлов Жилая площадь = 2510 кв.м. 3084 кв.м.значок часов. Трейси Маккой. 7 ЕДИНИЦА ТАУНХАУС. Легко расположенный (в одном квартале от Пенн-авеню), этот триплекс с 3 спальнями и 4 ванными комнатами (разрешенное проживание для 3 семей) находится под управлением владельца и поддерживается с 1991 года.
Это изображение имеет размер 1218×708 пикселей, вы можете щелкнуть изображение выше, чтобы увидеть его в большом или полном размере. фото размера. Планы дуплексных этажей для узких участков с лучшим дизайном фасада дома для двухэтажных домов, 2 этажа, 4 спальни, 4 ванные комнаты и площадь первого этажа 2080 кв. Футов, площадь первых этажей 2215 кв. Футов, общая площадь 4695 кв. футов, Роскошные современные планы домов с 3D-идеями экстерьера фасада senaterace2012.2000 кв. м. Каждая единица имеет 753 кв. фута жилой площади на первом этаже и… 10 января 2018 г. — Изучите доску Жака «Планы таунхаусов/дуплексов» на Pinterest. Таунхаус Cut Triplex является продолжением дизайнерских идей, исследованных в дополнении Carved Duplex на крыше в Нью-Йорке, завершенном SPACECUTTER в 2011 году. Стоимость дома: 10 долларов США x количество комнат (включая спальни и гостиную), если есть несколько одинаковых. … Факультет Св. Таунхаус II Триплекс. В этом проекте дома общей площадью 93 кв.Одна спальня со шкафами и туалетом, одна большая гостиная, одна просторная кухня с кладовой и гостиная-столовая с отдельным туалетом расположены на первом этаже.
Building Designs By Stockton Plan 6 2890 1 Планы семейных домов Планы гаражных домов Планы двухуровневых домов. 5 ванн и частный открытый оазис. Из-за разнообразия доступных стилей дизайна многоквартирных домов вы можете выбрать стиль, характерный для вашей части страны. Введите свой вопрос о Wood Circle Triplex 3 в поле ниже и нажмите «Отправить».Команда разработчиков Summit, известная как один из самых опытных строителей таунхаусов в Вашингтоне, предлагает широкий выбор планов этажей и проектов для узких участков, в том числе проекты таунхаусов с фронтальной и задней загрузкой и параллельные застройки. Если вы строите для арендаторов в своем будущем многоквартирном жилом/квартирном комплексе или строите, чтобы жить вместе со своей большой семьей, вам понравятся эти варианты. Основные характеристики многоквартирного дома Polk 4-Plex. Таунхаус в парке — Не похоже ни на что в Нью-Йорке! Просмотрите наш обширный ассортимент двухэтажных таунхаусов, планов одноэтажных домов и проектов домов в задней части дома, чтобы найти дизайн (ы), наиболее подходящий для вашего проекта.
992 квадратных фута! Включает в себя 2 кровати, 2 ванны и 1 гараж! Просторная кухня с техникой! Подключение стиральной машины и сушилки! Отличный план этажа со столовой и гостиной! Комфорт с камином! Школьный округ 11, Колорадо-Спрингс! Двор огорожен забором! Вид на горы и ручей! План этажа Cb Jeni Homes Trinity. Цена 27 286 200 бат. Этот план трехэтажного дома дает вам три квартиры одинакового размера с немного разными экстерьерами. План участка включает в себя открытое пространство с натурализованным содержанием под стражей 7 июня 2018 г. — Изучите планы домов.Крытая веранда на главном уровне открывается в семейную комнату. Бесплатная консультация эксперта от Makemyhouse Architects. МНОГОСЕМЕЙНЫЕ МОДУЛЬНЫЕ ДОМА Нажмите на любой из домов ниже, чтобы увидеть увеличенное изображение и план этажа. Комфортабельный семейный номер приветствует гостей в доме и предлагает прекрасное место для развлечения или отдыха. Этот план этажа с двумя спальнями прост, обтекаем и удобен, так как предлагает легкий доступ к общему гаражу и подъезду.
Пожалуйста, заполните форму ниже и дайте нам знать, если вы хотите получить бесплатную карту сообщества Wild Dunes и/или какие-либо поэтажные планы кондоминиумов, таунхаусов и коттеджей курорта Wild Dunes.План 38029LB Трехэтажный дом с 2 спальнями План Планы таунхауса, Источник: www. Эта открытая планировка включает паркетные полы, камин, современную кухню с техникой из нержавеющей стали, главную спальню с балконом с видом на воду, огромную гардеробную и отдельную ванную комнату, похожую на спа, с замачиванием. в люксах и пристроенных (или двухквартирных) квартирах. Существует также доступ к вашему собственному частному саду! Планы трехуровневых этажей, включая двухуровневую планировку, трехуровневую планировку, трехуровневую планировку, трехуровневую планировку, представляют собой многоженский дом, одноуровневый, с 2 спальнями, двухэтажной квартирой, 32 38 дома.1 спальня на единицу. Напротив, здание, состоящее из двух смежных единиц на двух разных объектах, обычно считается двухквартирным домом или домом-близнецом, но также называется дуплексом в некоторых частях северо-востока США.
Многие из наших планов являются эксклюзивными для планов прибрежного дома, однако, если вы встретите план, идентичный одному из наших, на другом веб-сайте и по цене ниже, чем у нас, мы сравняем цену и снизим ее еще на 7%. Трехэтажный таунхаус Geary Place ПЛАН ДОМА #592-032D-0383 Трехэтажный таунхаус выглядит как дом В трехэтажном таунхаусе Geary Place есть 6 спален и 3 ванные комнаты.. Планы этажей триплекс. Сообщество: кондоминиумы часто ориентированы на сообщество с клубным домом, бассейном, полем для гольфа и / или аналогичными удобствами. ОПИСАНИЕ ПЛАНА. масштаб ванны: 16 футов 1/16 дюйма = 32 фута тип здания партнеры зарегистрированы 16 августа 2017 г. концептуальные планы этажей зданий район Бью на Хейл Куму факультет таунхаусы Университет Бригама Янга Гавайи — Лайе, Гавайи Бью Гавайи Дома для перевозки от 378 900 долларов США. com Планы многосемейных домов тройные таунхаусы план дома архитектурные планы триплекса проекты 3 плана семейных домов архитектурные проекты дома архитектурные планы триплекса проекты.
ПанорамаПланы Дома. Проект трехэтажного дома. Уголок для завтрака 361 Комната для хранения 73 Кухонный островок 276 Открытая планировка этажа 908. Инвестирование в строительство планов трехэтажных домов или многоквартирных домов другого типа может помочь увеличить ваш собственный капитал независимо от того, живете ли вы в одной квартире или полностью сдаете ее в аренду. С такими стилями, как Cape Cod, Ranch, Two-Story, Multifamily и Modern, у нас обязательно будет дом, который соответствует вашим уникальным дизайнерским вкусам или станет отправной точкой для проектирования вашего индивидуального модульного дома. M. Северо-восточная Флорида — это место, где вы найдете очарование, гостеприимство и культуру, характерные для юга.Планы трехэтажных спален — это одно из изображений из триплексных дизайнов, вдохновленных фотогалереей House Plans. Построен в 1910 году. Проекты таунхаусов и планы этажей Faun Design Интерьер современного дома. RM 14-10 «x 7-5» ГОСТИНАЯ ПЛАН ПЕРВОГО ЭТАЖА. com план квартиры с двумя спальнями триплекс дома планы этажей дуплекса индийский дом изображение планы четыреплекса планы этажей триплекс таунхаусы простой дизайн экстерьера дома в Керала-Терре-Хот Индиана квартиры двухэтажные двухуровневые конструкции … 1 февраля 2019 г.
— Исследуйте доску JAYA MIX BLOOMS «Триплекс» на Pinterest .ЧИТАТЬ ДАЛЕЕ. Откройте для себя наш прекрасный выбор планов многоквартирных домов, современные планы дуплексов, такие как наши северо-западные и современные двухквартирные дома, дуплексы и триплексы, дома с цокольными квартирами, чтобы помочь оплатить ипотеку, дома для нескольких поколений и небольшие многоквартирные дома. Проекты домов с 2 спальнями — Небольшие дома и квартиры для бабушек Книга дизайна дома — Планы домов с 2 спальнями БЕСПРОДАВЕЦ. Half Baths: Планы одноэтажного таунхауса — One Story 1200 sqft-Home: Планы одноэтажного таунхауса — Одноэтажный дом Имеющий 2 спальни на площади 1200 квадратных футов, следовательно (111 квадратных метров — либо — 133 квадратных ярда) Планы одноэтажных таунхаусов .Дома бобра и коты Уистлер II планы домов лимберт линвуд индивидуальные дома триплекс планы домов таунхаус гараж 102379 переехать в готовые дома копперстоун от Веста свойства коллекция городских дворов пристроенные сзади гаражные дома.
План дуплекса J0120-11d Этот план в стиле таунхауса можно легко адаптировать для увеличения количества квартир, если это необходимо. Отзывы. Этот дом в Гамильтон-парке, расположенный на участке шириной 25 футов, предлагает идеальную открытую планировку, 5 спален, 3. В апартаментах Prairie Walk предлагаются апартаменты с одной и двумя спальнями в аренду в Канзас-Сити.Дизайн. Бюджетные планы сохраняют высокие стандарты энергоэффективности и качественных материалов. (931) 516-1873. Австралийские проекты домов таунхаусов видят наш широкий ассортимент и стили, которые имеют большую ценность, и включают в себя планы таунхаусов, проекты таунхаусов, проекты таунхаусов, архитектуру таунхаусов, двойной ключ таунхауса, проекты таунхаусов, планы таунхаусов, планы этажей таунхаусов, строители таунхаусов, таунхаусы проекты, чтобы помочь начать строительство вашего нового дома сегодня. com — Просматривайте фотографии внешнего ряда планов трехэтажных домов мастера с разрешением 723×600 пикселей, (ID фотографии № 124548), вы просматриваете изображение № 20 из 20 фотогалереи.
Спальня 1, которая также может быть главной спальней, имеет собственный туалет и ванную, а также дополнительные встроенные шкафы. Планы таунхаусов, также называемые рядными домами, включают в себя несколько жилых домов, которые полностью примыкают друг к другу с одной или обеих сторон. B2 Triplex Town House Ff Brunel Two См. также Лучший дизайн домашнего экрана. Идеи квартиры. Таунхаус модели Albright с 5 ванными обязательно понравится. Блоки собраны в один файл, которые сделаны на чертеже, как в плане, так и в плане. Прекрасная вещь в плане дома Platinum заключается в том, что вы можете настроить его по своим потребностям и вкусу.Эта безупречная коллекция трехэтажных таунхаусов, спроектированная с учетом потребностей современных жителей Нью-Йорка, всего с двумя квартирами в каждом здании, просторными интерьерами и частными открытыми пространствами, бросает вызов ожиданиям городской жизни. Cider Mill Run New Palestine, Indiana 46163 Телефон 317-507-7931 youngarchitectureservices. У Saratoga Modular есть много планов для модульных дуплексных зданий, модульных триплексных зданий, модульных 4-квартирных зданий, модульных кондоминиумов был проектом Integrity Developments, разработанным собственными силами.
Мы встретимся и превзойдем цену любого конкурента. Это последний план этажа триплекса с 3 спальнями, который имеет нынешний дизайн и модель. ПОЗВОНИТЕ НАМ СЕЙЧАС 1800 284 539. Посмотрите планы этажей. Вот где появляются эти планы с 1000 квадратных футов! Бесплатные планы этажей Wild Dunes и карта сообщества. Просмотрите современный, открытый план этажа, 2 ванные комнаты, подвал, деревенский и более узкий … Планы этажей. В этих парящих конструкциях часто есть места для парковки, хранения и отдыха на первом уровне, главные комнаты для собраний наверху и спальни наверху для лучшего вида.Вы найдете место для всего, и в каждой резиденции есть множество шкафов, в том числе несколько гардеробных. триплекс; 2 спальни 2 ванные комнаты; Отдельный вход; прихожая; 2 частные парковки; частный сад; Доступ к частному бассейну; Полностью оборудованная, с большим балконом. Возможно размещение с домашними животными. Планы квартир. Планы двухэтажных домов. Всего = 2754 кв. О Нас. QBCC 50792/1014053, OFT NSW 62084C, BLD260339.
Расположение прачечной. Планы трехэтажных домов, планы трехквартирных домов, планы многоквартирных домов, Т-399. Симпатичный таунхаус на Бостонской террасе.Все триплексы расположены на первом этаже. 515 долларов за штуку. В них легко могут разместиться две-три семьи. План этажа представляет собой 4 больших спальни Планы дома Поиск. Для строительства в штатах Массачусетс, Коннектикут, Род-Айленд, Вирджиния и Нью-Хэмпшир: планы этажей кондоминиума The Home Store, Inc. Идти. Мемориальная улица. Каждое трехквартирное здание содержит две модели Burlington и одну модель Concord. Планы домов с узким участком. План 2-го этажа 3-комнатная квартира l$-zxltr-cr l’xl$ гостиная,’столовая 13-10. Все планы этажей можно просмотреть в большем размере или скачать. 2 спальни / 2.Найдено чертежей: 108. Трио современных таунхаусов, построенных братьями и сестрами Джеффом Вонгом, Джимми Линем и Джулией Лок на треугольном участке в Кенсингтоне, Калгари. Назад Триплекс над студией Кухня на Третьей улице Бруклинский таунхаус Нестираемая архитектура Треугольник спокойствия Купальники Профессиональное портфолио Триплекс над студией Кухня на Третьей улице Бруклинский таунхаус Нетрадиционный гламурный кондоминиум в стиле Тюдор Современный фермерский дом Искусство Архитектурный план этажа .
ФТ. N$ 1 250 000. В наших квартирах есть большие встроенные шкафы, собственный внутренний дворик/балкон и многое другое.Австралийские планы дуплексных домов и проекты таунхаусов включают в себя множество домов на две семьи для всех типов земли. много… Тройная корона. Если вы профессиональный строитель, таунхаусы и кондоминиумы представляют собой эффективный способ построить доступные дома начального уровня, которые понравятся покупателям. Ванные: 3. Архитектурные планы этажей триплекса здания дома Брюнье Очиатес многоквартирный дом 2 дуплекса основы дизайна 82366 драммонд угловой многоквартирный дом 175510 4 плекса 3 таунхауса спальни. План Описание Компактный таунхаус, этот триплекс состоит из трех эффективных жилых единиц.Гараж 272 квадратных метра. луисфидсдк. Посмотреть все Триплекс на продажу в Ванкувере, Северный Ванкувер, Западный Ванкувер. Планы этажей модульных домов Benjamin Custom. Мы тесно сотрудничаем с вами, чтобы настроить наши планы в соответствии с вашим вкусом. Комплекс был спроектирован с тремя таунхаусами, расположенными один за другим.
Посмотрите больше идей о планах триплекса, дуплекса, плана дома. Но дом площадью 200 или 300 квадратных футов может быть для вас слишком маленьким. Архитектурный стиль и деревня также будут отмечены, когда они будут доступны.12 кв.м. В … Этот план трехэтажного дома дает вам три квартиры одинакового размера с немного разными экстерьерами. План 4 этажа. В каждой квартире главная спальня расположена в передней части дома, а остальные спальни — в задней. Мы не студенты, поэтому не участвовали в конкурсе, но были заинтригованы задачей: спроектировать доступный и устойчивый многоквартирный дом для трех семей. в месяц / 2 чел. дуплексы. Пожалуйста, напишите свой вопрос о Факультет Св.Дом. Планы дома в коттеджном стиле. Этот традиционный план этажа площадью 2776 кв. Футов имеет 2 спальни и 2 ванные комнаты. Ознакомьтесь с разработками триплекса. Посмотрите больше идей о планах домов, планах этажей дома, дизайне дуплекса. Halo nasa 75 изображений, представленных планами этажей и проектами с сообщениями на нем.
Никаких ковров. Стоимость квартир: 2 квартиры на этаже 40$, 3-4 квартиры на этаже 50$, 5-8 квартир на этаже 60$, 9-12 квартир на этаже 70$, 13-16 квартир на этаже 80$. 4 из 5 … С недавней продажей своего таунхауса в Ривер-Норт Винс Вон сократил свой портфель недвижимости в Чикаго до единственного объекта — трехуровневого пентхауса площадью 12 000 квадратных футов на вершине многоквартирного дома Palmolive. дуплексные и многоквартирные дома.3-х этажное здание. План двухуровневого дома Ch277D в современной архитектуре, эффективная планировка, обе квартиры с четырьмя спальнями. Ссылка по ключевому слову: дуплексные конструкции для узких блоков, дуплексные конструкции, план этажа таунхаусов, дизайн дома, дуплексные конструкции, идеи украшения дома, конструкции таунхаусов, дом мечты, сборные дома, план дома, дома хотондо, дома хенли, демонстрационные дома, дома Диксона ,bunnings,allworth дома,интерьер … Наслаждайтесь всеми преимуществами нового дома, включая план этажа, разработанный для современного образа жизни и оснащенный новыми удобствами и преимуществами жизни в сообществе.
Кухня, столовая и гостиная красиво выделены благодаря размещению больших ковриков из джутовой синели в центре каждой зоны, в то время как дерево используется в качестве общего материала в трех пространствах, чтобы объединить их. 5 ванных комнат ПРИМЕЧАНИЯ ВАШЕЙ МАМЕ: Через пару лет Многоуровневые планы многоквартирных домов F 543 Family One Townhouse Designs. Кит Хоумс Австралия. Квартира в аренду, расположенная по адресу 7808 Sonoma Springs Cir # 103, Lake Worth, Florida 33463 доступна на ByOwner. Сопутствующий план: Получите план дуплексного дома в стиле Тюдоров на несколько семей с помощью 85053MS.Не видите то, что ищете? У нас есть сотни планов этажей Обратитесь к плану этажа для точной планировки. Блок развития — Планы этажей. Наши планы дуплексов могут быть легко изменены в соответствии с вашими потребностями. Посмотрите больше идей о планах дуплексов, планах домов, планах этажей. Планирование истории. из индивидуально разработанного плана этажа, традиционный фасад Уэмбли, снос нашего старого дома планы австралийского жилого дома.
Предыдущее фото в галерее — это дизайн трехэтажного дома, который выложили на Flickr. Триплекс Б.Проекты архитектурных планов трехэтажных домов. Одно- или двухэтажные дома или их комбинация являются популярным выбором и обеспечивают выгодные варианты. Sheba — Ph2601 — 3 спальни — 5016 кв. футов … нет Телефон 317-507-7931. Планы наших двухуровневых домов площадью 3600 кв. м начинаются очень рано, почти с 1000 кв. Футов, и включают планы больших жилых этажей площадью более 5000 кв. Футов. Посмотрите на эти проекты трехэтажных домов. Центр модельных домов в Уэйтли, Массачусетс, 73 State Rd. В этих случаях денежной попытки, мы все стараемся экономить на любых расходах.Это изображение имеет размер 1200×900 пикселей, вы можете нажать на изображение выше, чтобы увидеть фотографию в большом или полном размере. Традиционное ранчо ремесленников с кучей прелестей и соответствующими удобствами! Планы цокольного этажа. Ниже представлена коллекция из 21 лучших фотографий планов трехэтажных домов в высоком разрешении.
бигхаузбордо. AutoCAD House планирует чертежи бесплатно для ваших проектов. услуги молодой архитектуры. ранчо), количество гаражей и многое другое. Позвоните нам по телефону 1-800-447-0027. Дома Wildlight открывают дверь тому, что делает #FLOCO таким особенным.жилой площади, триплекс владельца демонстрирует уникальную формальную обеденную ротонду, гостиную с открытой кирпичной кладкой и встроенным развлекательным центром, туалетную комнату и офисный уголок. Современный дом триплекс arquitetura, пространство Сан-Паулу, спроектированное стереть богемную старую дилемму, вечная борьба существует между домом и улицей … V-588| Виллы-близнецы, каждая трехэтажная, с 5 и 4 спальнями. Мы предлагаем множество планов и дизайнов, подходящих для вашего развития. Представляем The Townhomes at Reilly’s Meadow, новое сообщество таунхаусов, доступное со 127-й улицы и в нескольких минутах ходьбы от продуктовых магазинов, ресторанов, школ и многого другого.Просматривайте этот и другие пины на доске House Plans пользователя Stephanie Moreland.
pro Планы домов триплекс, модели триплекс — 3 жилых единицы. Coral Homes оставляет за собой право отозвать этот пакет в любое время без предварительного уведомления. Планы трехэтажного дома предусматривают три отдельных блока, построенных как единое жилище, которое можно разделить с семьей или друзьями. com план квартиры с двумя спальнями триплекс дома планы этажа дуплекса индийский дом изображение планы четыреплекс планы этажа триплекс таунхаусы простой внешний дизайн дома в Керала-Терре-Хот Индиана квартиры двухэтажные двухэтажные конструкции … Этот великолепный план дома триплекс имеет изумительную детализацию Тюдоров.Они часто являются зеркальным отражением друг друга и иногда называются «мезонет». HB 2001 позволяет владельцам недвижимости строить среднее жилье в районах, где большинство домов … Трехэтажный таунхаус с 3 спальнями на 30A рядом с пляжем Розмари. Популярные посты. Как заказать Имея множество стилей модульных домов и модульных планов этажей, легко воплотить в жизнь видение вашего индивидуального модульного дома с помощью Simplex Homes.
Triplex Plan Plansource Inc. Некоторые клиенты взяли два дома и объединили различные аспекты каждого, чтобы получить дом, который они хотят.Утройте потенциал своего блока с тройным развитием. Вход в триплекс предлагает большой коридор, ведущий к 2 спальням, ванной, туалету и выходу в подземный погреб площадью 20 кв.м. Эта красивая квартира с 2 спальнями и 2 ванными комнатами имеет большую кухню, столовую и открытую планировку, всю новую бытовую технику, новый кондиционер. Планы трехэтажных домов, планы этажей и проекты для строителей Для беспрецедентного вида и максимального пространства на небольшом участке вы не сможете превзойти трехэтажный дом. … Планы многоквартирных домов.Строительство среднего таунхауса стоит около 166 500 долларов, если предположить, что его площадь составляет 1500 кв. м. Перейти к содержимому. Дополнительные расходы могут взиматься за лесной пожар, акустику, N3, сервитуты или дополнительные требования ковенантов и подпорные стены. Этот триплекс находится в отличном районе Вест-Луп, рядом с супермаркетами, магазинами и ресторанами.
Планы трехэтажных домов, планы этажей и проекты. /ДИН. Таунхаус Триплекс 2 спальни, 2-1/2 ванные комнаты, 1232 квадратных фута Некоторые показанные элементы могут быть дополнительными или построенными на месте ГЛАВНАЯ СПАЛЬНЯ 15-6 «x 13-3″ 3-10» ПЛАН ВТОРОГО ЭТАЖА Heclaman Homes 1969 Wetcøttdag qaadtðeg q- {cnte/ О КОМПЛЕКТ.Недорогие 2-комнатные квартиры. ПЛАН ПЕРВОГО ЭТАЖА ПЛАН ВТОРОГО ЭТАЖА ТРИПЛЕКС С 4 СПАЛЬНЯМИ — КОНЕЦ 1-ТИП А ПЛАН ВТОРОГО ЭТАЖА ОБЩАЯ ПЛОЩАДЬ 69, 79, 165, 198, 212, 285, 291, 325 276. Здесь достаточно места для встреч, пока готовится еда. открытая планировка этажа обеспечивает легкий обзор жилой зоны. ДЕТАЛИ ПЛАНА Код плана этажа: MHD-2016024 Планы двухэтажного дома, Планы современного дома Спальных мест: 5 Ванных комнат: 5 Площадь этажа: 308 кв. футов. Задний фасад. План. 7 июня 2018 г. — Ознакомьтесь с планами домов. 2 СПАЛЬНИ Aberdeen 2 спальни / 2 ванны / 1500 — 1999 кв. футов Carroll 2 спальни / 1 ванная / 760 кв. футов Cedar Ridge 2 спальни / 1 1/2 ванны Standard Ph403 — 4 спальни — 6738 кв.
футов.77 кв.м. Продолжайте двигаться, не выходя из дома, в оздоровительном клубе Baybridge с полным спектром услуг. В триплексах есть стиральная машина и сушилка. жилой площади, площадь основного этажа составляет 1305 кв. м. Более 50 тысяч фотографий, загруженных местными и международными профессионалами, вдохновят вас только на сенатрейсе 2012. Гараж на две машины используется исключительно этой единицей. Просмотрите планы домов. Помимо того, что он находится в одном из городских… Дон Антонио Содружество 3-спальный таунхаус Площадь участка: 46 кв.м. Площадь участка: 186 кв.м. 3 Спальни с туалетом и ванной Комната для прислуги с туалетом и ванной С балконом и туалетной комнатой С чердаком (кладовая) 2 гараж Цена за единицу: 12 171 969 песо Мин.« Мы свяжемся с вами как можно скорее. Чтобы получить дополнительную информацию или организовать экскурсию по нашим объектам, позвоните нам сегодня по телефону 1-800-233-4233 Simplex 10 января 2018 г. — Изучите доску Jac «Планы таунхаусов / дуплексов» на Pinterest.
Этот доход от одной или обеих квартир может даже покрыть общий платеж по ипотеке! По крайней мере, у вас будет денежный поток, на который вы можете рассчитывать. Планы дома в Техасе. Вход имеет двухэтажный потолок и открыт для лестницы. На второй уровень, спальные помещения наслаждаются уединением, каждое из которых имеет доступ к полноценной ванной.Рекомендуемый план: 80801. Крошечные дома привлекают много внимания в телевизионных шоу, и неудивительно — их можно построить по доступной цене, и они действительно творчески подходят для разумного использования ограниченного пространства. Двухэтажный большой зал со сводчатым потолком и газовый камин создают атмосферу элегантности. Выберите квартиру с 2 спальнями за арендную плату в размере 600 долларов США и депозит в размере 300 долларов США. Один блок предназначен для […] TRIPLEX HOUSE — The Room Architects. Планы счетов за дизайн трехэтажных домов со спальнями — это одно из изображений из 26 лучших проектов трехэтажных домов в фотогалерее «Архитектурные планы».
Более крупные планы могут также включать студии или кондоминиумы с одной спальней, часто размещаемые на нижнем этаже многоэтажного здания с более крупными квартирами, такими как пентхаусы, на планах верхних этажей. Этот тип дома является отличным вариантом для сдачи в аренду или возможностью для семьи или Wildlight. Новое сообщество будет состоять из 20 домов с основными спальнями на первом этаже. Бруклинский дом. 2 минуты чтения Следуйте за нами. 11-10 45-я улица. Позвоните нам по телефону 1-877-803-2251. Этот дизайн представлен в верхней части галереи, потому что он является прекрасным примером того, как выглядит план этажа с открытой концепцией.Это Флорида Лоукантри, или #FLOCO, и ее уникальный образ жизни вдохновлен духом оригинальной Флориды и окружающего ландшафта. (718) 291-6240. жизни. План этажа и полную информацию смотрите здесь. Пожалуйста, ознакомьтесь с некоторой общей информацией о нашей компании, указанной ниже. Внеплановые и готовые к заселению планы этажей всех проектов недвижимости Дубая доступны.
Ваша кухня, столовая и гостиная легко перетекают из одной комнаты в другую, что идеально подходит для проведения небольшой встречи или большой компании.Щелкните изображение, чтобы увеличить его размер и получить более подробную информацию. Посмотрите больше идей на темы «план дома, триплекс, дом». Средние затраты (включая рабочую силу) 1000 кв. м. Средняя стоимость строительства дуплекса составляет от 95 до 220 долларов за квадратный фут. В каждом номере есть открытая семейная комната с камином, которая выходит на кухню и столовую на первом этаже. 2979. РЕЗИДЕНЦИЯ ЛЕОНИЯ-ВЕСТВЬЮ. Просмотрите все квартиры, таунхаусы, дома на одну семью и инвестиционные дома. 200 — 249 кв.м. Лучшие двухуровневые планы 2021 года для узких участков.профессиональная доска «Планы трехэтажных и четырехквартирных домов» на Pinterest. Он является генеральным директором компании и сотрудничает со своим отцом Беном, который занимается строительством с 1964 года. Посмотреть дома и планы этажей. Двух- и трехкомнатные квартиры пользуются повышенным спросом и долго не будут пустовать! Планы и проекты семейных / триплексных домов Dream 3 на 2021 год.
Triplex Plan Plansource Inc через. Фотографии МАРИ-ЭЛЕН БИЛОДО. Планы трехэтажного дома Планы таунхауса с 3 спальнями Планы трехэтажного дома, Источник: www. Таким образом, если у вас скромный доход, арендная плата за здание может помочь вам соответствовать требованиям.Энсон. План трехэтажного дома в планировщике гара площадью 3350 кв. Футов, план трехэтажного дома с 3 спальнями 38027 фунтов. RowHome TownHomes. Возможно, вам понадобятся следующие данные, которые мы добавили. План с 1 спальней расположен на 2-м уровне и предлагает гараж на 1 машину. Трое братьев и сестер объединили свои усилия для создания Plans Found: 86. Мечтательный таунхаус Эмили Блант и Джона Красински в Парк-Слоуп продается за 6 долларов. Что такое средний корпус / HB 2001? House Bill (HB) 2001 — это закон штата Орегон от 2019 года, требующий от местных органов власти расширения возможностей для среднего жилья — зданий, в которых есть жилые помещения для двух или более домохозяйств, но меньше, чем в обычном многоквартирном доме.
70 Ежемесячный DP в течение 12 месяцев: … Современный триплекс таунхауса Чистые линии крыши сарая… Квадратные футы: 6 687 Ширина: 53 Глубина: 69 Этажей: 3 Главный люкс: Верхний этаж Спальни: 10 Ванные комнаты: 8. Проекты таунхаусов. Очень похоже на дзен. Таунхаус 2–5 спален – 11146 кв. футов. ЦЕНА: $15. 6420 Вт. Открытая кухня, гостиная и столовая. Односемейный, Таунхаус, Дуплекс, Триплекс Квартиры-студии Планы триплекс Планы с 4 квартирами Планы на несколько семей. Наши апартаменты с одной спальней площадью 609 кв. футов идеально подходят для тех, кто хочет получить последнюю информацию о планах этажей в Дубае.План подлежит утверждению Генеральным застройщиком и местными властями. Таунхаус с 1–5 спальнями — 10 843 кв. футов. VER EN ESPAÑOL. м 2-х этажный таунхаус предлагает 3 спальни, 1. Нижний уровень имеет 1561 кв.м. Дизайн дуплексного дома. До 199 кв.м. Как планировать. Красивый лофт № A3 является одним из немногих трехэтажных домов в стиле таунхауса в здании, его площадь составляет 1575 квадратных футов и три этажа изящной гостиной с планировкой двух больших спален, а также большой гостиной / третьей спальни и трех ванных комнат.
! Совершенно новая кухня с комплектом бытовой техники Samsung из нержавеющей стали, высокий белый лак. ДОМ ОТКРЫТЫХ ДНЕЙ 12-12-2021, ВОСКРЕСЕНЬЕ, 11-4 ORIGINAL Великолепная зеленая отделка, зубчатые молдинги и завитки.Каждая единица имеет ширину всего 20 футов. Ниже представлены 24 лучших фото коллекции фото планов Fourplex в высоком разрешении. 3 МБ, а отдельные планы этажей имеют размер от 350 КБ до примерно 870 КБ. ПОКУПАТЕЛИ: Пол Маккартни и Нэнси Шевелл РАСПОЛОЖЕНИЕ: Нью-Йорк, N. 3. Plan étage Triplex Le Groupe Gci Планы триплекса с двумя спальнями изображения e993 com План триплекса планы дома чертежи 73078 планы триплекса чертежи дома 73058 план триплекса планы дома 58162. FHA требует всего 5% на покупку многоквартирных домов, с кредитными лимитами в большинстве районов страны в размере 403 000 долларов США для покупки дуплекса, 487 000 долларов США для трехквартирных многоквартирных домов и 605 500 долларов США для покупки четырехквартирных домов.Дизайн дома. Это включает в себя блок, законченный снаружи и внутри, а также пристроенный гараж на одну машину.
Посмотреть цены, фотографии, виртуальные туры, планы этажей, удобства, правила проживания с домашними животными, специальные предложения по аренде, информацию о собственности и наличие квартир в 8811 Dawnridge Cir Townhome на ForRent. в месяц / 3 чел. Виллы Triplex доступны в двух планах этажей, включая Burlington площадью 1542 квадратных фута или Concord площадью 1312 квадратных футов. 1786 кв. Этот колониальный дом площадью 3330 кв. футов с фронтонным входом имеет 3 1/2 ванны и 5 спален.Иногда они совсем другие. Австралийские дуплексные конструкции рядом с вами. Многоквартирный дом в стиле таунхауса Мы разработали этот проект Positive NRG Triplex™ в ответ на конкурс дизайна для студентов-дизайнеров, спонсируемый Dow Chemical. Обычно более чем одноэтажные, этот стиль многоквартирных домов также может быть включен в более урбанистический… Планы этажей таунхаусов с гаражами Планы этажей 3-этажных таунхаусов. Квартира на продажу в Pillar — Maison B Triplex. Настройте любой план этажа! Изучите чертежи трехэтажных домов с гаражом, узкой шириной, открытой планировкой и многим другим.
Два мастер-люкса. Наш самый большой план этажа, этот просторный дизайн включает пять спален, четыре ванные комнаты и гараж на 3 машины. Австралийские Duplex Designs имеют две независимые разработки, которые имеют общую стену. АЛЬПИЙСКАЯ РЕЗИДЕНЦИЯ I. Предлагаемые структурные планы этажей включают: двухуровневую, трехуровневую и одноуровневую планировку. визуализации . com План верхнего этажа для T 398 Планы трехэтажного дома с 3 спальнями, Источник: … Посмотреть дома и планы этажей. Наши опытные штатные дизайнеры могут разработать индивидуальный план дизайна таунхауса, дуплекса или дома в задней части дома в соответствии с вашими потребностями.Кухонный остров с барной стойкой. Багамы и Косумель — это планы с 3 спальнями, а Аруба — это таунхаус с 2 спальнями на 2-м этаже. КЛЮЧЕВОЙ ПЛАН Отказ от ответственности Все измерения в имперских и трехмерных пропорциях, исключая допуски на конструкцию. значок маркера местоположения. Выигрышная планировка с большим количеством места для развлечений.
В редких случаях, когда не удается найти подходящий дом, мы призываем клиентов предоставить нам свои планы двухуровневых домов. Планировка этажей. Планы таунхаусов с 3 спальнями Узкие многоуровневые планы таунхаусов от Diana Планы этажей квартир; Планы домов бунгало; Современные проекты домов; Планы двухуровневых домов; Современные проекты домов; Современные планы домов; Дома на одну семью; Проекты Маленьких Домов; Проекты таунхаусов; План двухэтажного дома; Проекты двухэтажных домов Предварительно разработанные изменения плана: если небольшие изменения плана этажа, такие как увеличение плана этажа, изменение планировки ванной комнаты и кухни, добавление дополнительных единиц в проект многоквартирного дома или просто изменение архитектурного стиля здания по запросу, пожалуйста, не стесняйтесь обращаться в наш офис по электронной почте или факсу по поводу эскиза с вашими идеями в этом 1159 кв.План дуплексного дома состоит из двух жилых единиц, прикрепленных друг к другу, либо рядом друг с другом, как таунхаусы, кондоминиумы, либо друг над другом, как квартиры.
Добавить к. планы дома. Некоторые из них включают две единицы на первом этаже и еще одну на втором этаже, чтобы обеспечить гибкость при различных размерах участков и требованиях к месту. АвстралийскиеПланы Дома. Гараж: 1 ОПИСАНИЕ ПЛАНА Amolo представляет собой двухэтажный дом с 5 спальнями, который можно построить на участке площадью 297 кв. м. Небольшой современный дизайн таунхауса современный дизайн таунхауса.План дуплексного дома предусматривает две отдельные единицы в одной и той же искусно спроектированной структуре. Услуги. 70 Плата за бронирование: 100 000 песо Остаток DP: 3 551 390 песо. Обратите внимание, что многие дома были изготовлены по индивидуальному заказу, и план этажа следует рассматривать только как возможность, основанную на том, что строители изначально предлагали для продажи. Наша карта сообщества Wild Dunes составляет около 6. И с 1 спальней + пристройкой, еще 1 главной спальней + пристройкой и 1 обычной спальней в… План этажа и фотографии многоквартирного дома Polk 4-Plex.
пинтерест.Большинство людей платят около 130 долларов за кв. Описание: Современный дизайн планировки от Greater Noida. Лучшие планировки трехэтажных домов. Вы здесь: Главная > Проекты трехэтажных домов: поиск по бренду. У нас есть десятки домов в различных стилях, формах и размерах, чтобы удовлетворить практически любые потребности. Планы дома с девятью спальнями Уникальный удивительный трехэтажный дом Планы 9 Дом-триплекс с 3 спальнями. План 2396 Видабело. Включая двухуровневые и трехуровневые модели, эти дома идеально подходят для любого образа жизни. Таунхаус в аренду по адресу 5320 Sagan Lane, Palm Beach Gardens, Florida 33418 доступен на ByOwner.Строитель домов более 20 лет, Тим является «сыном» в Turner & Son Homes. 160мл Аккуратный таунхаус с 3 спальнями, 2 ванные комнаты, кухня, гостиная, двор, затененная парковка. значок мобильного телефона. com Планы трехэтажного дома Планы трехэтажного дома с гаражом D, Источник: www. Биная имеет обширный опыт и успешный опыт управления несколькими проектами в ОАЭ, включая некоторые из самых известных и известных имен.
Первый этаж: 1050 кв.м. Свяжитесь с нами сейчас! Часто планы этажей для каждой квартиры почти идентичны.СОХРАНЕН РЕГИСТРАЦИЯ ВХОД. Планы дома более 20 кв. 30% DP: 3 651 390 песо. От полов из американского ореха до оригинальных дверей и кирпичной кладки — внимание к деталям можно найти во всем этом хорошо оборудованном доме. Бенедикт. Фильтровать по стилю (например, Таунхаус в парке. План дома дуплекса с 6 спальнями и кабинетом | 3405 кв. 5 Гордость Эдварда Дуплексы рядом стоят дороже, чем дуплексы с одной квартирой. Эмили Блант. 2. Дуплекс триплекс дом laprise maisons — это одно из изображений из этих 28 двухэтажных дуплексных идей, которые подойдут вам из фотогалереи Home Plans & Blueprints.8811 Dawnridge Cir Таунхаус в аренду в Остине, Техас. м. Здесь, в Building Designs by Stockton, мы можем предоставить отмеченные наградами проекты дуплексных планов. 137 W Concord Dr, Кларксвилл, Теннесси, 37042, США. Трехуровневый пентхаус в новом сверхвысоком здании на Манхэттене в списке миллиардеров за 66 миллионов долларов.
В квартире есть целый этаж крытой лоджии… План небольшого дома, сводчатый потолок, просторный интерьер, план этажа с тремя спальнями, дизайн небольшого дома с открытой планировкой. Планы этажей модульных домов Benjamin Custom.Подробнее «Речь идет о том, чтобы иметь строителя дома, который понимает, чего вы пытаетесь достичь в рамках своего бюджета, и у которого есть разумный совет. Один из способов позволить себе расходы на строительство нового дома — это включить некоторый доход от аренды в ваше планирование с помощью дуплекса. план дома Опубликовано в среду, октябрь план этажа показывает нижний уровень … Wood Circle Triplex 3. для дуплексов средней ценовой категории — Whately, MA 01093 413-665-1266 отдельные жилые помещения с отдельными входами на две семьи.Доступен таунхаус с 3 спальнями на продажу в Ла-Виста, Кесон-Сити, Метро Манила ️ Доступно / бюджетно ️ Идеально подходит для соло / пары / семьи. 025 миллионов, миллион долларов — это новая цена за 4 спальни в этом районе? У Бари Левин из @Properties есть список.
Нам они нравятся, может быть, вам тоже. Все материалы, размеры и чертежи приблизительны. Вы можете просмотреть наш полный список удобств Канзас-Сити, чтобы понять, почему нашим жителям нравится здесь жить. История спальни в планах дома Fourplex.com Планы этажей будут иметь одну, две, три или четыре спальни, которые обеспечат эффективное использование пространства вашего участка. Мы предлагаем более 30 000 планов домов и архитектурных проектов, которые могут эффективно отразить ваше представление об идеальном доме. 11029 Legacy 201 Boulevard # 201 Palm Beach Gardens, FL 33410. План двухуровневого дома Ch291D. Планы этажей дуплекса, триплекса, 4 плекса и таунхауса: планы дуплексного дома; Планы этажей TriPlex; Планы FourPlex; Планы этажей многоквартирных домов (5+) Покупка напрямую у источника дает вам доступ к знаниям наших дизайнеров, которые знают наши планы вдоль и поперек и готовы настроить планы в соответствии с вашими точными спецификациями.План дома 20 X 60 Индия. Свежий ремонт, балкон застеклен.
12 кв.м. Продается 2-х комнатная таунхаус в Парке Пионеров. РЕЗИДЕНЦИЯ ГОЛДШТЕЙНОВ. Большой зал со сводчатым потолком и газовым камином. г. Фактический план этажа может быть обратным или иметь незначительные отличия. Проверьте все детали и свяжитесь с владельцем. планы триплекса, фотографии фасада индийского дома для одного дома, план небольшого дуплекса, план дома с 5 спальнями. 5 Баня, роскошный трехэтажный дом Планы, роскошный дизайн фермы ранчо. Тим Тернер.Таунхаус — 4 спальни — 9402 кв. футов. Двусторонний камин объединяет это пространство с объединенной комнатой для завтрака и небольшой кухней. На этих планах этажей будут представлены стили традиционного, современного, современного ремесленного, бунгало, викторианского, испанского / средиземноморского, колониального и коричневого каменного стилей. Реконструкция и план этажа – загрузите PDF Щелкните здесь, чтобы просмотреть стандартные характеристики Печатная площадь: 28 x 66 квадратных метров: 1232 спальни: 2 ванные комнаты: планы многосемейных домов, планы этажей и проекты зданий Ищете ли вы дуплекс, триплекс или здание с еще большим количеством квартир, эта коллекция планов многоквартирных домов поможет вам.
Здесь вы найдете новостройки таунхаусов и кондоминиумов от более чем 0 застройщиков, предлагающих на продажу до 0 различных планов этажей таунхаусов и кондоминиумов.Y. Продается Rocky Crest Party Court N$1. Многосемейные дома. Ларчмонт-авеню — демонстрация Matterport 3D. 35 | Источник: Апартаменты Summit Chase. Что ищут люди в этом блоге: Планы семейного дома Triplex; Без категории. Роскошные дома в Гринвич-Оукс бывают нескольких конфигураций и варьируются от примерно 1400 до более 2300 квадратных футов. 13 квартир в стиле таунхауса Свяжитесь с Брэдом Холлом, чтобы посмотреть 402 9975 Fifth St, Sidney. 300 — 349 кв.м. 90. Проекты городских домов, дизайн таунхаусов, проекты таунхаусов, экстерьер таунхауса, планы этажей таунхаусов, таунхаус Мельбурн, планы таунхаусов, таунхаусы, наслаждайтесь всеми преимуществами нового дома, включая план этажа, разработанный для современный образ жизни, оснащенный новыми удобствами и преимуществами жизни в сообществе.Планы двухуровневых домов доступны в NaksheWala.
1953 кв. м. На этом плане представлены кухня, прачечная, гостевой санузел, две спальни, вспомогательный холл, кабинет, гостиная, кухня и гардеробная с эффектными каменными деталями. Фут | 316. Ссылка по ключевому слову: планы таунхаусов, планы дуплексных домов, строители дуплексов, двойной ключ, двойное размещение, планы дуплексов, планы дуплексов, планы дуплексов, дома Хенли, архитектура, планы дуплексов, планы таунхаусов, строители дуплексов, планы дуплексов для узкие участки, планы дуплексных домов, проекты дуплексных домов, проекты таунхаусов и планы этажей, строители таунхаусов, Роусон … Этот таунхаус представляет собой дом из коричневого камня на две семьи, в котором есть 5 спален, 3 ванные комнаты, 1 туалетная комната, большая гостиная. обширный сад на заднем дворе.На 1-м этаже 9-дюймовые потолки, а в главной спальне есть большая гардеробная и потрясающая главная ванная с душевой кабиной в стиле нео-угол и отдельно стоящей ванной. С большой гостиной и открытой кухней-столовой, Trinity делает развлечения легкими! The Upstairs Cont Найдите последние списки Triplex for Sale MLS в Metro Vancouver BC.
Источник: фотонхаус. Связаться с нами. Fourplex House Plans Bedroom Story via. Некоторые сообщества таунхаусов предлагают те же удобства, что и кондоминиумы, но другие являются более частными.Планы домов 40×60 в Бангалоре найти жилые планы дуплексных домов 40×60 в Бангалоре G+1 G+2 G+3 G+4 планы арендного дома или образец 2400 кв. футов … Стоимость строительства таунхауса. 3 этажа, 2 спальни + 2 ванные комнаты, 202. Иоанн Красинский. . Просто просмотрите наш широкий выбор стилей и размеров, чтобы получить дом, о котором вы всегда мечтали, и работайте с местной командой Platinum, чтобы адаптировать его в соответствии с вашими требованиями. Скрыть меню. Чистые линии крыши и просторные планировки делают этот современный трехэтажный таунхаус верным победителем.PHP-2015022, представляет собой план небольшого эффективного дома с 3 спальнями, 2 туалетами и ванными, с крыльцом, а также с одним пристроенным домом. Перечислен в $ 1. Обычно таунхаусы имеют два или более этажей. Планы дома под 20 кв.
0731-6803-999. Мы предлагаем много эффективных планов этажей и макетов в этом расположении. План этажа таунхауса 432 Park Avenue Этаж 40-44 — Блок C Этаж 62-73 — Блок B Этаж 77-84 — Блок A Этаж 77-84 — Блок B Этаж 91-96 — Блок PH Этаж Пентхаус Триплекс — Третий этаж Триплекс — Четвертый Пентхаус на первом этаже – Пентхаус на первом этаже – Терраса на крыше Мезонет 907 5th Avenue Units 8E – 8W 1100 Park Avenue Res A – Подвал Часто встречаются планы квартир, включающие две спальни и как минимум одну ванную комнату, а также отдельную гостиную и столовую. космос.Крытая передняя веранда и задний дворик. 5 миллионов РАЗМЕР: 3500 квадратных футов, 5 спален, 5. нет нет Многоквартирные или многоквартирные многоквартирные планы доступны во многих архитектурных стилях. 5м. Предыдущее фото в галерее — это план дома ремесленника Eplans, привлекающий трехэтажной площадью. Наш выбор дуплексных планов включает варианты с гаражами, внутренними дворами, одноэтажными и многоэтажными домами. Этот план дома из 3 квартир прост в строительстве и является отличным планом для района с высокой плотностью населения.
Многосемейные многосемейные планы представляют собой отличную инвестиционную недвижимость и хорошо работают там, где пространство ограничено из-за стоимости или доступности.Мы предлагаем различные архитектурные услуги, такие как разработка и модификация плана дома, разработка плана реконструкции, а также дизайн, производство мультимедиа и издательские услуги, и все это под одной крышей! Наша миссия состоит в том, чтобы убедиться, что все наши клиенты на 100% удовлетворены качеством наших планов и превосходством наших услуг. Дуплекс часто путают с апартаментами. Посмотрите больше идей о триплексе, пентхаусе, планах этажей. Для таунхаусов, расположенных в городских районах, стоимость строительства которых часто выше, такой же таунхаус будет стоить около 187 500 долларов.Загрузите наше бесплатное руководство «3 шага к идеальному плану этажа». План трехэтажного дома, первый этаж: На первом этаже есть два входа, входная дверь в гостиную и гаражные ворота в тандемный гараж. Внешние блоки имеют три спальни, средние — четыре, и все три блока имеют ADU за гаражом.
Планы с 3 спальнями имеют 2 этажа и гараж на 2 машины. Особенно эти блоки подходят для выполнения архитектурных чертежей и будут полезны архитекторам и дизайнерам. ком будет включать; Традиционные планы двухуровневых домов, современные планы двухуровневых домов, планы двухуровневых вилл, планы двухуровневых бунгало, планы роскошных двухуровневых домов.Триплекс Девелопмент. Эти параллельные модульные дуплексные планы (модульные планы на две семьи) часто называют таунхаусами. План каждого этажа включает в себя … Эффективное и продуманное дизайнерское решение, таунхаусы быстро становятся востребованным вариантом для получения высокой отдачи от ваших инвестиций. Дуплекс, триплекс и четырехэтажные планы от дизайнера новых домов номер один в Перте. На последнем уровне кухня открытой планировки и ее столовая выходят на Mason B Triplex для продажи в Pillar. классический ремесленный стиль в наших трехэтажных таунхаусах Brown Wegher Каждый дом спроектирован так, чтобы максимизировать ваше жилое пространство.
Наши двухуровневые планы этажей выложены различными способами. Комплекс East Vic Park Triplex Townhouse. Площадь участка: 297 кв.м. Другое = 244 кв.м. Смотрите больше идей о планах дуплексов, планах этажей, планах домов. Изучите эти планы многоквартирных домов, если вы ищете не только дом на одну семью, но и здания, в которых проживает как минимум две семьи. в области. 4 кв. Ключевые слова: дизайн дома дизайн дома 3d дизайн ворот дома дизайн окон дома дизайн дома фото дизайн потолка дома дизайн стены дома дизайн дома видео дизайн дома до 20 лакхов 20×36 План этажа.Почему стоит покупать у ООО «Спартек»? Районы с сильным ветром; Выход на пенсию и гибкие планы этажей Мы строим дуплексы и триплексы по индивидуальному заказу Westchester является лидером в области проектирования и строительства новых модульных жилых комплексов. ) Планы дуплексов и таунхаусов различаются по размеру, стилю и удобствам. Это могут быть двухэтажные дома с полноценной квартирой на каждом этаже или расположенные рядом жилые помещения на одном уровне, которые имеют общую стену.
Мы также строим одноэтажные модульные многоквартирные дома. Кухня и столовая. Планы дома Dream 1000 кв.м.Многоквартирный план Четырехэтажные планы Триплекс представляет собой небольшой многоквартирный дом с 3 жилыми единицами, построенными как одно строение. футов ИЛИ. Пристройки, ремонт, новые дома, новый дизайн дома, навесы, перголы. Планы многоквартирных домов и архитектурные проекты в eplans — еще одна ситуация, когда вы можете построить дуплекс или триплекс для сдачи в аренду для получения дополнительного дохода, живя в одной из квартир, независимо от вашей цели… Планы дуплекса для узких участков. План этажа предназначен только для визуального представления. Информация о листинге и план этажа (выше) показывают, что 11-комнатная квартира, ранее принадлежавшая знатоку макияжа Элизабет Арден, имеет размеры (приблизительно) 4750 квадратных футов и включает в себя 3 спальни и 3. Экономия при модульном строительстве в этих областях значительна, потому что ускоренного графика строительства, и, конечно же, вы по-прежнему получаете все преимущества индивидуального модульного строительства.
Размер. 725 долларов за штуку. com — это галерея вдохновения и идей о доме, жизни и дизайне интерьера в Интернете. Размер дуплекса. Джош Реннер. Позвоните нам по телефону 1-800-447-0027. Стандарт -Ph2502 — 3 спальни — 7577 кв. футов. Ранчо. Этот обзор относится к плану дома с узким участком под заголовком статьи «Популярная концепция 12+ 3-х спальных трехуровневых этажей». Планы следующие. Позвоните по номеру 9242 9500, чтобы поговорить с экспертом по развитию сегодня. Любимый. Читать далее. ЖИЛОЙ. Длинные каштановые потолочные панели… Таунхаусы строятся рядами, поэтому жильцы обычно делят хотя бы одну стену.В этой статье вы можете скачать для себя готовые блоки различной тематики. Вилла — 4 спальни — 11001 кв. футов. Эта вилла с 2 спальнями и 2 спальнями считается одним из лучших мест в Дройерс-Пойнт. Просмотрите наши планы двухуровневых домов и найдите идеальный план. Дизайнерская отделка, новая бытовая техника из нержавеющей стали, личное пространство на открытом воздухе и стиральная машина с сушкой.
4 спальни, 3 ванные комнаты, потрясающий вид на пляж и океан, прямой доступ к пляжу. Роскошный триплекс с четырьмя спальнями, тремя ванными комнатами, вместимостью 10-12 человек, площадью более чем в два раза больше, чем в северной и южной частях.4 из 5 звезд. Фильтр. Стиль Многоквартирный Размер 1232 фута 2 Размеры 28 футов x 66 футов Спальни 2 Ванные комнаты 2½ Триплекс Здания представляют собой трехэтажные здания, которые предпочитают в основном люди с большой семьей. жилой площади, а верхний блок имеет площадь 2 185 кв. м. Развлекаться легко благодаря просторной открытой планировке. Площадь этих квартир составляет 900 кв. м. См. фотографии здесь (плана этажа нет, но в списке 2017 года он есть. Передний таунхаус имел собственный фасад и гараж, а два других таунхауса отделялись от общей подъездной дороги.Планы семейного дома. В некоторых апартаментах могут быть террасы или патио. 15 сентября 2018 г. — Изучите доску Кристиана Муньоса «Триплексы» на Pinterest. Дома. В настоящее время у нас есть план этажа с двумя или тремя спальнями на этаже, но этот план этажа предназначен только для домов Brownstone Homes.
Часто планы этажей для каждой квартиры почти идентичны. Это изображение имеет размер 766×543 пикселей, вы можете щелкнуть изображение выше, чтобы увидеть фотографию в большом или полном размере. Николь 0817184082 Лестница 3 2. Океан виден […] Мы разрабатываем узкий дуплексный дизайн в соответствии с вашим земельным участком и бюджетом.План 2 этажа Внешний вид. Все спальни находятся наверху, а главная спальня имеет сводчатый потолок. Экстерьер таунхауса. Кроме того, эти планы легко доступны на нашем веб-сайте, что облегчает вам поиск идеального, готового к застройке проекта для вашего будущего дома. 1. Наружные стены размером 2 x 6 дюймов с изоляцией R19 Высокая теплоизоляция R30 в полу и потолке Двойные стеклопакеты, энергосберегающие виниловые окна Этот триплекс таунхауса West Village площадью 2250 квадратных футов по адресу 407 Bleecker Street является прекрасным примером. co для проектирования дуплексных и многоквартирных домов.Найдите наши планы трехэтажных домов сегодня. Планы дома под 16кв.
Найдите проекты трехэтажных домов с открытой планировкой, крыльцом, гаражом, подвалом и многим другим! Позвоните по телефону 1-800-913-2350 для получения экспертной поддержки. Планы этажей являются концептуальными и не являются представлением какой-либо конкретной собственности. Страница № 490 Объявлений: 180 Natal Road, Rancho Mission Viejo CA 92694 — 297 Argonne Avenue, Long Beach CA 90803 Сдается квартира по адресу 7808 Sonoma Springs Cir # 103, Lake Worth, Florida 33463, доступная на ByOwner. Шеба — 21003 — 3 спальни — 6168 кв. футов.com ПРЕДЛАГАЕМЫЙ ДИЗАЙН — ТРИПЛЕКС 1 ЭТАЖ ПЛАНЫ ПРЕДЛАГАЕМЫЙ ДИЗАЙН — ТРИПЛЕКС 1 ЭТАЖ ПЛАНЫ ПРЕДЛАГАЕМЫЙ ДИЗАЙН — ТРИПЛЕКС 2 ЭТАЖ ПЛАНЫ структуры, каждая с 3 таунхаусами (всего 6 единиц), в жилом городском поселке 23rd & Union-Jackson. Апартаменты Конкорд Виладж. План дуплекса. План Дуплекс. Вы также можете выбрать один с тройным концом, заплатив немного больше! Арендная плата 650 долларов, депозит 350 долларов. план таунхауса триплекс .


