Планировки хрущевок 2 комнаты: Хрущевки. Описание и типовые планировки
Перепланировка 2 комнатной хрущевки: нюансы и идеи
Хрущевка имеет небольшую площадь. Двухкомнатная квартира в основном не более 30 кв. м. с небольшой кухней, узким коридором и совмещенным санузлом. Перепланировка 2 комнатной хрущевки при таких исходных параметрах – дело непростое, но в итоге невзрачная квартира преобразится во вполне пригодное жилье. Квартиры в домах типовых хрущевских серий 1-510, 1-511, 1-477, 1-515 характеризуются довольно низкими потолками, они не превышают 2,5 метра. В основном хрущевки имеют неизолированные жилые помещения, балкон, стены сделаны из легких материалов.
Достоинства и недостатки жилья
Плюсы и минусы следующие:
- Недостатки квартир. Хрущев в 1957 году решил оптимизировать процесс строительства, сделать его быстрым для скорейшего обеспечения граждан собственным жильем. Началось массовое возведение панельных и кирпичных домов с простыми планировками. Небольшая площадь была задумана для большей компактности домов, которых нужно было построить много.
Квартиры имеют плохую звукоизоляцию, малую площадь, тесные хозяйственные помещения, низкие потолки. Особенно в них сэкономили на площади кухни, в некоторых вариантах она не больше 4,5 метров. - Достоинства хрущевок. В свое время ими были застроены большие площади городов, которые теперь стали их центром. Сносят их далеко не везде. Им вполне можно придать презентабельный внешний вид. Компактность дома тоже можно считать достоинством. Нет лифтов, многоэтажности, ощущения огромного улья. Не все любят высотные современные дома, в которых соседей можно никогда не узнать в лицо.
Виды расположения помещений
Несмотря на типичность, такие квартиры могут иметь несколько вариантов расположения жилых помещений.
- Планировка «вагончик». На входе – маленький коридор, напротив входной двери расположен вход в большую комнату. Из нее в торце – вход в помещение, меньшее по площади. Окна выходят на разные стороны дома. Санузел и маленькая кухня доступны из коридора.

- Планировка «распашонка». Окна такой хрущевки выходят на одну сторону. Возле входа размещается смежный санузел и вход в большую комнату. Маленькая кухня отделена от «зала» небольшой стенкой. Спальня гораздо меньше по площади, но зато есть шикарная кладовка.
- Планировка изолированная. Такие квартиры встречаются реже. У них обычно раздельный санузел и две отдельные комнаты. Кухня совсем маленькая, меньше, чем у предыдущих вариантов.
Согласование перепланировки
Все виды планировки 2 х комнатной хрущевки возможно улучшить, при этом помня о нюансах согласований и запретах.
Удобством хрущевки является то, что несущая стена разделяет квартиры, а все перегородки не несущие. Значит, их проще снести. В кирпичной малогабаритке нет несущих стен, есть только балки. Обычно изменения согласуются, только если затрагиваются несущие стены, но есть свои сложности с вариантами изменений.
Проблемы есть с перепланировкой санузла. Тесную ванную хотят расширить за счет коридора или кухонного пространства.
Если санузел раздельный – логично будет сделать его совмещённым. Ограничения по перепланировке отражены в пункте 3.8. СаНПиН 2.1.2.2645-10 и п.9.25 СП 54.13330.2016. Документ поясняет, что санузлы запрещено увеличивать за счет комнат и кухни. Сделать их шире можно за счет нежилого пространства, в которое входят: кладовка, коридор, встроенный шкаф.
Кухню запрещено увеличивать за счет жилого помещения. То есть переносить перегородку между кухонной и жилой зоной запрещено согласно п. 22 Постановления Правительства РФ № 47 от 28.01.2006. А вот на снос перегородки запрета нет.
Важно! Если кухня оборудована действующей газовой плитой, то сносить стенку между ней и соседним помещением категорически запрещается. Этот перенос согласовать невозможно.
Необходимо официально согласовать некоторые изменения, заказав новый план квартиры в БТИ.
Не нужно согласовывать:
- Снос или возведение стен из легких конструкций.
- Перемещение межкомнатных перегородок.

Необходимо согласовать:
- Расширение площади за счет внешних помещений (балкон).
- Снос или пробивка нового проема в несущих стенах.
- Перемещение инженерных коммуникаций.
- Снос всех перегородок в квартире или их перенос в другое место.
Переделка хрущевки: плюсы и минусы
Перепланировка 2 комнатной хрущевки имеет свои достоинства:
- интерьер приобретает современный вид;
- перенос перегородок может создать расширенное пространство;
- перепланировка сопровождается ремонтом, что поможет создать уникальный дизайн квартиры-хрущевки.
Перепланировка хрущевки имеет и свои минусы:
- перемещение или снос перегородок удлиняет процесс ремонта;
- если сооружать раздельные помещения – они станут меньше по площади;
- вариантов перепланировки квартиры из 2-х комнат не так много из-за ограниченной площади и особого расположения помещений;
- возрастает стоимость работ.

Возможности перепланировки
Хозяин может выбирать любой вариант перепланировки своей хрущевки, но нужно оставить в ней минимально необходимые функциональные зоны: для приготовления еды и сна.
Есть ряд типичных решений перепланировки 2 х комнатной квартиры хрущевки.
Соединение гостиной и кухни
Между «залом» и кухней убирается стенка. Она небольшая, не является несущей, и убрать ее не составит труда. Как правило, перегородка сделана из шлакоблока. В результате такого соединения в квартире создается вариант студии, одно открытое пространство объединяет кухню и гостиную. Пространства становится больше. Визуально объединение помещений дает больше света и воздуха.
Такое преображение хрущевки имеет свои плюсы:
- Ремонт соответствует модным тенденциям.
- Для приготовления еды есть отдельная зона, но за счет отсутствия перегородки хозяйка не отстраняется от семьи на время готовки.
- Квартира становится более функциональной, можно создать небольшую столовую.

- Перегородку можно сделать прозрачной или представить ее в виде этажерки с цветами, что добавит декоративности помещению.
Недостатки у совмещения тоже есть:
- Все запахи из кухни попадают в гостиную.
- При отсутствии двери на кухне невозможно уединиться.
Неплохо смотрится разделение зала и кухни барной стойкой, которую можно сделать как традиционной, так и дополнительным местом для хранения. В этом случае она будет сделана как узкий комод.
Способы совмещения показаны на фото:
Соединение раздельного санузла
Реально при изолированной планировке. Между ванной и туалетом просто сносится стенка, которая сделана из кирпича или шлакоблока.
У такого варианта переделки есть несомненные плюсы:
- Добавление площади позволит разместить в санузле стиральную машину.
- Визуально помещение перестанет напоминать кладовку.
- Можно поставить душевую кабину, тогда добавится еще немного пространства.
Минусы объединения ванны с туалетом следующие: - При наличии трех и более человек может образоваться очередь на посещение.
- Материальные и временные затраты.
Заметка! Перечисленные варианты перепланировки согласования в БТИ не требуют, если кухня оборудована электроплитой.
Разделение смежных помещений
Можно разделить смежные помещения определенными декораторскими решениями:
1. Если помещения расположены по типу «распашонка».
Можно убрать кладовку и на ее месте сделать часть коридора с дверью в маленькую спальню. Придется продлять существующий коридор дополнительной стенкой, в которой сделать еще один вход в зал. Тогда оба помещения будут раздельные, но большее потеряет пару квадратных метров площади.
Можно убрать кладовку и сделать боковой вход без сооружения дополнительного коридора. Тогда появятся условно раздельные комнаты.
Заметка! При таком виде перепланировки существующий проем спальни закладывается кирпичом, шлакоблоком или зашивается гипсокартоном.
Для экономии закладка проема может быть выполнена материалом от слома стенки в кладовке.
2. Если помещения расположены по типу вагончика.
Это трудный способ перепланировки хрущевки. Можно просто убрать стенку между помещениями или сделать ее сборно-разборной. Для семьи с детьми создание большого открытого пространства не подойдет. Такой вариант приемлем для молодой семьи или семьи без детей. В любом случае длинное открытое пространство будет смотреться некрасиво. В такой квартире можно встроить дополнительную зону гардероба посередине или сделать две отдельные комнаты, продлив коридор. При этом одно из помещений станет меньше по площади.
Обычно такие двущки-хрущевки имеют в дальней комнате встроенные шкафы, их можно убрать и соорудить большой гардероб между помещениями с входом из небольшого коридорчика. При этом они станут условно раздельными и будет где хранить вещи.
Сделать изолированные помещения можно путем сноса двери в большую комнату и продления коридора так, чтобы можно было сделать две двери друг против друга.
Останется место для небольшой кладовки. Большее помещение в площади потеряет, а второе останется без изменений.
Можно дополнить преобразования сносом стенки между комнатой и кухней, тогда пространство превратится в гостиную-кухню с двумя окнами. Коридор, который вел к кухне, можно объединить с санузлом, тогда он увеличится примерно на 1,5 кв. метра. Единственным неудобством в такой квартире останется маленький узкий коридорчик, из которого будут выходить целых четыре двери (в санузел, две комнаты и кладовку).
Есть полезный и эффективный вид перепланировки хрущевки с помощью зонирования шкафами-купе или просто зонами хранения. Например, шкаф-купе двусторонний разделяет зал и спальню. Одна открывающая часть выходит в зал, другая – в спальню. Одновременно происходит и разделение пространства, и добавление места для хранения.
Можно сделать место для хранения в виде узкого шкафа вместо перегородки между кухней и большой комнатой. Будет оригинально и полезно.
Кладовку в хрущевке-распашонке можно преобразить дверями-купе в современную гардеробную.
Вход будет из спальни.
Фото перепланировки 2 комнатной хрущевки показаны ниже:
Перепланировка в зависимости от состава семьи
Существуют типы перепланировки двухкомнатной квартиры с целевым назначением.
Квартира по типу офиса или студии
В таком варианте может жить либо один человек, либо двое, но без детей. Все перегородки между гостиной, кухней и коридором убираются, объединяя пространство. Перегородка в спальню сдвигается внутри зала до балконной двери.
За счет такого преображения получается большое пространство студийного типа и увеличенная спальня с гардеробом.
Можно сделать небольшой кабинет, отделив его прозрачной перегородкой.
Плюсы такого варианта:
- Много места для приема гостей.
- Увеличенная спальня.
Важно! Перенос внутренней перегородки требует согласования в БТИ.
Квартира для семьи с маленьким ребенком
Также переносится перегородка, увеличивая спальню.
Тогда там помещаются и родительская и детская кровати. Это допустимо для семьи с маленьким ребенком. Кладовка при этом убирается для увеличения пространства.
Плюсы такого варианта:
- Спальня становится больше.
Минусы решения:
- Дети быстро растут, и вариант является временным, позже придется выделить ребенку отдельное место для отдыха.
- Не остается места для хранения.
Хрущевка для семьи с одним-двумя детьми
Вариант предполагает, что стена кладовки будет перенесена вглубь спальни, чтобы образовались две небольшие комнаты вместо одной. В этом случае из большой комнаты будет две двери, ведущие в маленькие комнаты. Гостиную можно совместить с кухней, чтобы образовать общее семейное пространство.
Плюсы перепланировки
- Родители и дети получают свои собственные спальни.
- Общаться всей семьей можно в большом объединенном пространстве.
Минусы решения:
- Родительская спальня будет без окна.

- Маленькие комнаты станут еще меньше.
Такой вариант для семьи можно сделать иначе. Кладовка остается на прежнем месте и преображается в функциональный гардероб, который можно оснастить современными местами для хранения. В большой комнате убирается перегородка с кухней. Из коридора наоборот достраивается небольшая стенка, чтобы за ней могла поместиться двуспальная кровать. Импровизированная спальня отделяется от кухонно-гостиной зоны легкой перегородкой из матового стекла. При такой перепланировке дети получают свою комнату, а родители место для отдыха, отделенное от общего пространства.
Важно! Вышеуказанные целевые способы перепланировки возможны только для типа «распашонка».
Весьма сложно преобразовать двушку с изолированными помещениями, там можно только объединить ванную с туалетом. Хрущевку вагончиком сделать более приемлемой довольно трудно, но возможно и даже с увеличенным санузлом. Самый удобный вариант для перепланировки – это хрущевка «распашонка».
Здесь можно предложить широкий спектр преобразований.
Преобразить малогабаритную квартиру путем перепланировки вполне реально. Вариант нужно выбирать, исходя из состава семьи, типа планировки, собственных желаний, материальных и временных ресурсов. Перепланировка и дизайн двухкомнатной хрущевки могут стать увлекательным творческим процессом.
Посмотрите видео «Перепланировка хрущевки: особенности»
Поделиться:
Тонкости планировки 2-х комнатной «хрущевки»
Самая полная информация по теме: «тонкости планировки 2-х комнатной «хрущевки»» с полным описанием и комментариями от профессионального мастера.
Когда говорят о “хрущевках”, подразумевают тесные комнаты и неудобную планировку. Но жилищная программа, запущенная по инициативе Н. С. Хрущева позволила в короткое время получить квартиры многим советским семьям.
До сих пор в них проживают дети и внуки этих счастливчиков.
Панельные и кирпичные многоэтажки возводились в считанные месяцы, а вместе с ними – магазины, школы, сады, детские площадки. В наши дни люди стали более избирательными. Их уже не удовлетворяют тесные стены крохотных квартирок. Пришло время перепланировок.
Прежде, чем изменить хрущевку, нужно понять, что она собой представляет. Почти во всех типовых проектах 2-комнатные квартиры имеют смежные комнаты. Их общая площадь составляет 40- 45 кв м, жилая – 26-31 кв м, высота потолков – 250 см, толщина наружных стен – 30-40 см. Из-за тонких стен тепло- и звукоизоляция слабая. В таких квартирах санузлы могут быть совмещенными или раздельными.
Небольшая площадь, наличие проходных комнат, низкие потолки, отсутствие лифтов в домах делают это жилье не самым привлекательным, поэтому жильцы обращаются к перепланировке.
Главной проблемой предстоящих изменений становится регистрация в БТИ. Столкнувшись со сложностями получения документов, жильцы стараются не афишировать переделки своей жилплощади.
И напрасно, так как квартиру с незаконной планировкой невозможно продать, подарить или произвести любые другие юридические действия.
К положительным моментам относится возможность убрать стены внутри помещения (так как в хрущевках несущих стен нет) и приступить к осуществлению нового проекта с любыми фантазиями. Чаще всего перестраиваются кухня и коридор. Многие совмещают санузел. В изначальном виде в ванной комнате помещалась раковина и сама ванная (место под стиральную машину не предполагалось). Совмещая санузел, унитаз оставляют на месте, а канализационный стояк перенести невозможно. Ванную разворачивают к другой стене или ставят душевую кабинку.
Нет тематического видео для этой статьи.
| Видео (кликните для воспроизведения). |
В полученной площади помещают стиральную машину. Возможны минимальные предметы мебели. Коридор становится больше за счет кладовки. Встроенный шкаф-купе вполне ее заменит.
Комнаты нередко объединяются в одну. А, соединяя их с кухней и коридором, можно получить студию. В таком варианте придется газовую печь заменить электрической или соорудить перегородку по типу шкафа-купе.
В условиях газоснабжения кухня должна быть изолирована от жилых помещений.
В хрущевке можно проводить демонтаж кладовых, антресолей, ниш и любых подсобных помещений. Можно переносить дверные проемы или делать их в виде арок. Допустима и установка второй входной двери.
Разрешено объединение жилой площади с балконом при условии его утепления. При этом разбирается часть несущей стены под окном. Но радиаторы общего отопления должны оставаться на месте. Над ними делают барную стойку. В перепланировке двухкомнатной квартиры следует учитывать и другие особенности, а точнее то, чего делать нельзя:
- трогать несущие стены (например, сделать дополнительное окно). Могут разрешить сделать дверь, если предполагается пристройка;
- переносить радиаторы на лоджии и балконы;
- демонтировать или замуровывать каналы вентиляции;
- расширять санузел, ванную за счет жилой комнаты или кухни.
Это можно сделать, разобрав кладовку или уменьшив коридор; - квартиры, размещенные на разных этажах, нельзя объединять за счет монтажа межэтажных перекрытий;
- кухню нельзя переносить в жилую комнату или ванную, а можно только расширить;
- точно так же нельзя перенести санузел или ванную на территорию жилой площади. Это связано не только со сложностями общей канализационной системы, но и протечками, которые могут произойти на жилые комнаты соседей внизу;
- запрещен перенос газовых труб;
- демонтаж канализационного стояка;
- нельзя самовольно пристраивать балконы и другие сооружения;
- эти условия следует выполнять, чтобы не причинить вред дому. Их несоблюдение карается штрафами.
Учитывая все запреты и возможности, составляется проект перепланировки для подачи в жилищную комиссию. Но следует помнить, что аварийное жилье перестраивать не разрешается.
Метраж квартиры получится расширить банальным способом – убрать все стены.
В «двушках» это делать разрешается. Например, в угловой квартире после таких изменений в помещении окажется два окна, что сделает комнату более светлой. Можно «поиграть» с размерами, но существует множество других хитростей, с помощью которых можно обмануть зрение, не прибегая к разрушениям.
Белый цвет расширяет пространство, а темный делает его глубоким. Правильно выбрав цветовую гамму стен, можно получить дополнительный объем. Потолок можно сделать зеркальным. Это уведет взгляд в другое пространство. Если нет готовности к радикальным решениям, поможет глянцевый натяжной потолок. Причем темный цвет будет отражать больше.
Можно по краям отделки создать темные гипсокартонные конструкции, а в центральной части – белый глянец. Этот прием хорошо увеличивает потолок.
Наливной пол с глубинным рисунком, продольно направленные половицы, светлая глянцевая плитка на нежилых участках – все сыграет на зрительное увеличение территории.
В маленьком помещении не нужно акцентировать мебель. Пусть она сольется с общим фоном комнаты. Ее не должно быть много. Многофункциональные трансформеры устроят любое незначительное пространство.
Правильно оформленное окно тоже сработает. От сложного и новомодного дизайна лучше отказаться. Окно должно быть простым и светлым. Если ниспадающие шторы лягут на пол, потолок покажется выше.
Для кухни – максимум жалюзи или тонкие шторы. Освещение дополнит работу над расширением пространства. От центральной люстры лучше отказаться. Больше подойдет точечное освещение, расположенное вдоль стен. Можно подсветить стеклянную мебель или стены с акцентами на картины и зеркала. Жилые комнаты можно оставить раздельными, если правильно поработать с пространством.
9 вариантов планировочных решений для двухкомнатной квартиры — хрущевки
- Планировочные решения для семьи из 2-х человек.
- Планировочные решения для семьи из 3-х человек (1 ребенок).

- Планировочные решения для семьи из 4-х человек (2 ребенка).
- Планировка переделки из 2-ком в 3-ком квартиру
Друзья! В данной статье мы рассмотрим различные варианты планировки 2-комнатной хрущевки. Наиболее популярные серии хрущевки это 1-515, 1-511
а так же 1-335 для них так же подойдут эти планировки.
| Видео (кликните для воспроизведения). |
Все планировки я сделал с размерами и подробными планами.
Можно без труда скачать и сделать что-то свое похожее. Если у вас возникнут вопросы, то задавайте их в комментариях к этой статье.
Для каждой отдельной планировки будут добавлены ее «плюсы» и «минусы».
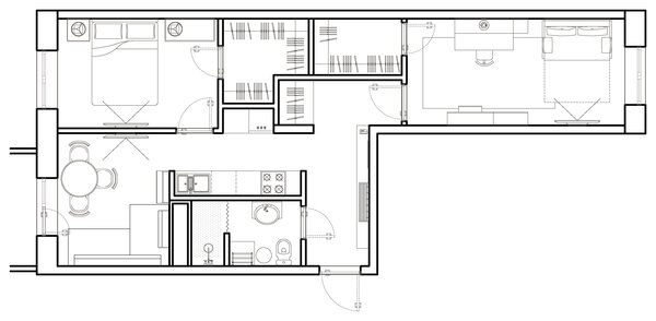
1) Планировка 2-комнатной квартиры для семьи из 2-х человек (3 варианта).
Для молодой семьи, которая еще не завела детей, планировка будет достаточно простой и понятной. Одна комната отводится под спальню, вторая — под гостиную.
Кухню и гостиную можно совместить, так как площадь кухни совсем мала, а по сути, кухня в хрущевке все равно является частично проходной. Довольно часто мои заказчики просят сделать какое-нибудь рабочее место для того, чтобы можно было посидеть с ноутбуком. Я постарался разместить мини-кабинет в некоторых вариантах планировки 2-комнатной хрущевки.
Планировка 2-х комнатной хрущевки для семьи из 2х человек (вариант 1)
- гостиная кажется больше за счет объединения с кухней
- полноценный стол на кухне
- есть полноценный гардероб в спальне
- достаточно места для хранения вещей
- в спальне есть полноценное рабочее место
- есть сложность с согласованием из-за увеличения кухни за счет ванной
- гостиная — проходная для кухни и спальни
- в прихожей нет полноценного шкафа при входе
Есть определенная сложность с согласованием, так как холодильник находится в зоне ванной комнаты. Один из вариантов решения — это увеличение ванной комнаты, но кухня становится уже.
Планировка 2-х комнатной хрущевки для семьи из 2х человек.
В этой планировке я попытался сделать вход в спальню менее заметным. Кухня имеет традиционную планировку и не нарушает никаких норм. Хотя в спальне и нет гардероба, но шкаф длиной 2.6 метра очень вместительный.
- гостиная кажется больше за счет объединения с кухней
- в спальне есть полноценное рабочее место
- хотя в квартире и нет гардероба или кладовки, но шкафов достаточно много
- есть полноценный стол на 6 персон
- отсутствие узких и темных коридоров
- гостиная — проходная для кухни и спальни
- ванная комната не имеет ванной чаши, а только душ
- в прихожей нет шкафа
- рабочее место не изолировано
- небольшой размер кухни
Данную планировку согласовать можно, так как ванная комната находится в пределах мокрых зон. Нарушений перепланировки нет.
Планировка 2-х комнатной хрущевки для семьи из 2х человек.
В этом варианте планировки 2-комнатной хрущевки спальня расширена за счет гостиной. В гостиной для TV сделана ниша. Стандартный обеденный стол ставить не стали, а сделали небольшую барную стойку. Квартира подойдет для молодой пары. Интересное решение для ванной комнаты — помещение увеличено за счет коридора. В прихожей даже получилось расположить небольшой гардеробик.
- гостиная кажется больше за счет объединения с кухней
- с дивана не видно кухню, кухня более изолирована
- ванная комната увеличена за счет коридора
- прихожая имеет шкаф и более изолирована от гостиной
- в спальне есть полноценное рабочее место
- в спальне есть гардероб
- гостиная — проходная для кухни и спальни
- визуально гостиная кажется меньше из-за выступа ванной комнаты
- не очень большая кухня
Данную планировку согласовать можно, так как ванная комната находится в пределах мокрых зон. Нарушений перепланировки нет.
Планировка 2 комнатной квартиры в хрущевке: лучшие решения и особенности
Многие владельцы жилья в старых домах сталкивались с такой проблемой, как отсутствие необходимого пространства для нормального проживания. Особенно негативные отзывы нередко звучали в отношении квартир, которые находились в домах, построенных еще во время Хрущева и отсюда получивших свое название. Такие помещения имели маленькую кухню и небольшие комнатки, не очень удобной конфигурации. В таком жилище сложно организовать нормальный быт, особенно если речь идет о проживании целой семьи.
Планировка 2 комнатной квартиры в хрущевке – это единственный вариант, который позволит решить проблему и придать жилплощади функциональности. Если воспользоваться существующими приемами и советами дизайнеров, то из неудобной хрущевки вполне может получиться уютная квартира. Рассмотрим несколько нюансов проведения таких работ и представим несколько советов.
Преимущества и недостатки планировки 2 х комнатной квартиры в хрущевке
Стандартная планировка 2 х комнатной квартиры в хрущевке отличается низкой комфортабельностью и функциональностью.
Примеры планировки 2 комнатных квартир в хрущевке на фото можно найти в интернете. Чаще всего, дискомфорт вызывает неудобное расположение помещений, а также ограниченность по площади проживания.Именно по этой причине, владельцы стараются произвести новую планировку квартиры хрущевки из 2 комнаты сразу же после того, как приобрели жилье. Это позволит исключить возможные неудобства и привести жилище в порядок. Некоторые заказывают планировку 2 комнатной квартиры в хрущевке у опытных строителей, которые выезжают по месту проведения необходимых работ бригадой и быстро исправляют ситуацию. Чтобы сократить расходы на проведение в 2 комнатной квартире хрущевке планировку, можно выполнить все необходимые работы собственными руками, однако, стоит понимать, что для отдельных этапов могут потребоваться определенные умения и навыки.
Планировка двухкомнатной квартиры в хрущевке может иметь как преимущества, так и некоторые недостатки. Можно выделить следующие плюсы процедуры:
- комнаты становятся просторными и довольно уютными, а интерьер становиться более подходящим для комфортного проживания;
- поскольку стены не являются несущими, то демонтировать их можно достаточно легко, тем самым радикально изменив планировку квартиры хрущевки из 2 комнат;
- новая планировка двухкомнатной квартиры в хрущевке откроет для владельцев неограниченное пространство для дальнейшего оформления и позволит сделать красивую отделку или обратиться к специалистам, для составления уникального дизайнерского проекта.

Помимо несомненных плюсов выполнения планировка 2 комнатной квартиры в хрущевке, следует отметить несколько минусов:
- планировка 2 х комнатной квартиры в хрущевке может стать очень сложным предприятием, потому что, ремонт и демонтаж подразумевает удаление или возведение целых стен, иногда простенков;
- при разделении смежных комнат, пространство помещения может быть уменьшено;
- планировка двухкомнатной квартиры в хрущевке обязательно потребуется крупных финансовых вложений, хотя сумму и можно снизить за счет самостоятельного выполнения отдельных работ;
- ремонт, связанный с планировкой 2 комнатной старой квартиры в хрущевке, может потребовать немало времени и сопровождаться большим количеством мусора, грязи и пыли;
- проведение планировки угловой двухкомнатная квартира в хрущевке чревато большой потерей пространства, в связи с неудобным расположением окон и дверей.
Начальный этап — согласование работ по планировке двухкомнатной квартиры в хрущевке
На вопрос, какая планировка двухкомнатной квартиры лучше и как правильно подобрать подходящий вариант, однозначного ответа нет.
Это связано с тем, что каждая квартира индивидуальна, и выбирать варианты планировок двухкомнатных квартир хрущевок стоит с учетом особенностей самого жилья и с учетом используемых приемов, технологий, материалов, для проведения необходимых работ.
Варианты планировок двухкомнатных квартир хрущевок присутствуют в интернете в большом количестве. Каждый тип имеет свои особенности и некоторые нюансы проведения строительно-монтажных работ, с учетом особенностей жилого помещения.
При разработке проекта, стоит изучить планировки в 2 комнатных квартир хрущевок на фото и выбрать именно тот, что будет удовлетворять всем запросам и пожеланиям владельца жилья, а затем подготовить необходимую документацию. Следует отметить, что согласование планировки старой двухкомнатной квартиры в хрущевке может занять до восьми месяцев и чтобы сократить сроки подготовки документации, стоит обратиться в жилищный орган напрямую.
Следует отметить, что не все типы планировок двухкомнатных квартир хрущевок нуждаются в согласовании. Существует вид работ, для которых подготавливать документы не требуется и можно приступать к работе, сразу после подготовки проекта. В перечень таких мероприятий входят:
- монтаж или демонтаж конструкций, выполненных из легкого материала, например, из ГВЛ, фанеры, гипсокартона;
- перенос межкомнатных перегородок;
- отделка балкона или лоджии пластиковыми панелями.
Без согласования запрещено производить следующие работы:
- расширение площади квартиры за счет имеющегося лестничного пролета;
- удаление несущих конструкций и перемещение инженерных перегородок;
- объединение нескольких помещений в одно.

Варианты планировок двухкомнатных квартир хрущевок
Типы планировок двухкомнатных квартир хрущевок могут быть самыми различными, однако, выбирать тот или иной вариант стоит с учетом индивидуальных особенностей помещения, чтобы потом жилье действительно стало удобным для проживания. Чтобы подобрать варианты планировок двухкомнатных квартир в пятиэтажных хрущевках, стоит разобраться, какие из них наиболее интересны и актуальны для конкретной жилплощади. Хорошую помощь в этом могут оказать фото планировок в 2 комнатных квартир хрущевках, представленные в большом количестве в интернете. Наиболее удачными идеями считаются те, при которых в ремонте не участвуют несущие стены.
Единственное, что стоит учитывать при планировке двухкомнатной квартиры в хрущевке – это обязательно наличие три функциональных зоны – кухонная, спальная и зона отдыха. Запланировав местоположение каждой из зон можно разрабатывать проект далее. В качестве вариантов планировок двухкомнатных квартир хрущевок можно выделить следующие, уже проверенные временем и получившие общее признание:
- Разделение смежных комнат.

- Совмещение зала с кухней.
- Совмещение ванны с туалетом.
Особые сложности может вызвать проведение планировки угловой двухкомнатная квартира в хрущевке. Это связано с повышенным уровнем шума и меньшей теплоизоляцией помещения. Дополнительно потребуется устранить эти проблемы, иначе, проживать в такой квартире будет не вполне комфортно.
О том, какая планировка двухкомнатной квартиры лучше, сказать достаточно сложно, потому что, каждый владелец квартиры предпочитает выбирать ту, которая сделает его жизнь более комфортной.
Чтобы сэкономить пространство в помещении и сделать жилье уютнее и комфортнее, стоит заранее продумать дизайн помещения и выделить специальные зоны, где человек будет отдыхать, принимать пищу и просто проводить время. Правильное зонирование — это одна из задач, которая должна быть выполнена при проведении планировка 2 комнатной квартиры в хрущевке. Как уже было отмечено, в квартире должны присутствовать зона кухни, зона отдыха и зона для сна.
Для этого можно разобрать старые перегородки и возвести новые, а также, тщательно подобрать мебель, которая будет вписываться в общий дизайн помещения. Лучше всего, отдать предпочтение встроенным конструкциям, которые одновременно хорошо выглядят, выполняют все свои функции и позволяют освободить пространство. Что немаловажно, при проведении в 2 комнатной квартире хрущевке планировки стоит выбрать качественные отделочные материалы, которые дадут возможность выполнить разделение зон, акцентируя внимание на достоинствах получившегося помещения.Правила, которые нужно соблюдать при проведении планировки
Планировка 2 комнатной квартиры в кирпичной хрущевке должна проводиться строго по правилам. Эти условия прописаны в строительном регламенте и должны соблюдаться в точности, чтобы не повредить всему дому. Перечень правил следующий:
- ванну и туалет можно расширять только за счет кладовки или коридора, но нельзя увеличивать за счет площади кухни или другого жилого помещения;
- трогать несущие стены категорически запрещено, кроме случаев, когда необходимо сделать в стене проем под дверь;
- перемещать кухню в ванную комнату, туалет или жилое помещение нельзя;
- при объединении кухонного помещения, где установлено газовое оборудование, с другим помещением, важно предусмотреть между ними легкую перегородку или иной вид разделения пространства.

Нарушение этих правил ведет к штрафным санкциям со стороны ответственных органов и негативным последствиям в виде разрушения жилья.
Рассмотрев вопросы, связанные с тем, как выполняется планировка 2 комнатной квартиры в хрущевке, можно сделать вывод, что, несмотря на некоторую сложность такого мероприятия, результаты позволяют людям проживать в по-новому обустроенной квартире с максимальным комфортом. Чтобы итоги ремонтных работ были действительно качественными, стоит обращаться к профессионалам или строго придерживаться правил и рекомендаций при самостоятельном проведении планировки 2 комнатной квартиры хрущевки.О недвижимости Республики Беларусь
Хрущевки. Описание и типовые планировки Сбт, Янв 22. 2011
4- и 5-этажные дома первого поколения массовой застройки с малогабаритными квартирами, в которых небольшие помещения ипроходные общие комнаты. Высота потолков 2,48 м, в блочных домах некоторых серий — 2,7 м, совмещённый санузел, слабая звукоизоляция внутренних стен, лифты отсутствовали.
«Хрущёвки» (а также негативное «хрущобы», от «трущобы») — панельные или кирпичные четырех-пятиэтажные дома, массово сооружавшиеся в СССР во время правления Никиты Сергеевича Хрущёва и получившие в народе его имя.
Строительство «хрущёвок» продолжалось с 1958 по 1985 год. Строительство явилось дополнительным мощным толчком к урбанизации страны, и улучшению качества жизни населения — отдельные квартиры получили многие тысячи семей. Действует СНиП 1958 года.
4- и 5-этажные дома первого поколения массовой застройки с малогабаритными квартирами, в которых небольшие помещения ипроходные общие комнаты. Высота потолков 2,48 м, в блочных домах некоторых серий — 2,7 м, совмещённый санузел, слабая звукоизоляция внутренних стен, лифты отсутствовали.
«Хрущёвки» сносимых серий предназначались для временного решения жилищной проблемы и были рассчитаны на 25 лет, но часть из них до сих пор используется по назначению, представляя угрозу для жителей. «Хрущёвки» несносимых серий имели расчётный ресурс 50 лет, поздние исследования показали, что ресурс может быть продлён до 150 лет (при своевременных капитальных ремонтах).
В Москве и Санкт-Петербурге (Ленинграде) действуют программы сноса и реконструкции кварталов хрущёвок и замены их современным жильём. В Минске при капитальном ремонте таким домам утепляют внешние стены.
Массовое возведение панельных и кирпичных жилых зданий, или хрущевок, с упрощенной планировкой квартир, небольшими комнатушками и низким потолками, до сих пор считается вынужденной мерой в строительстве, направленной на обеспечение послевоенного поколения более-менее сносным жильем. Хотя на самом деле на то, чтобы массово строить что-либо более удачное в смысле планировки комнат, просто нет ресурсов разработчика, так как дома строились, как на конвейере. За образец были взяты варианты планировки хрущевки на 2 комнаты, и, отталкиваясь от типового жилья из двух раздельных комнат, практически на ходу комбинировались хрущевки на 1, 3 и даже 4 комнаты.
За двадцать лет интенсивного строительства использовалось несколько проектов и серий хрущевок, квартиры строились из железобетонных панелей или кирпича, в четырех и пятиэтажном исполнении, с высотой потолков 250 и даже 270 см, но внутренняя планировка помещений придерживалась примерно одной и той же схемы.
Практически все квартиры, за исключением блочных вариантов с тремя комнатами, строились по одним и тем же характеристикам:
- Общая площадь планировки двухкомнатной квартиры в хрущевке составляла от 30 до 46 квадратов, из них 8 м 2 отводились для спальной, 4,5 м 2 – для кухни, остальное для зала – 14 м 2 , коридора и вспомогательных помещений;
- Зал в планировке всегда был проходным, то есть, чтобы попасть в наиболее удаленную спальную комнату, приходилось пересекать гостиную или зал;
- Санузел для хрущевки мог быть раздельным с ванной, но всегда располагался в одном блоке с кухней и коридором, таковы особенности планировки водных и канализационных коммуникаций.
В хрущевках любой планировки всегда отсутствовал лифт и вспомогательные помещения для обустройства электрощитовой, запорной водопроводной и газораспределительной арматуры. Все жизненно важные краны и вентили либо перенесены в подвальное помещение, либо находились на фасаде здания.
Если здания из силикатного и красного кирпича, по некоторым оценкам, могут простоять до 100 лет, то для панельных домов конструкции из железобетона теряют несущие способности через 40-45 лет эксплуатации.
Большинство панельных хрущевок первого проекта находятся в аварийном состоянии из-за ошибок в планировании и недобросовестного обслуживания зданий.
На долю хрущёвок в крупных городах приходится примерно 70% жилого фонда. Для районных центров и поселков вклад хрущевок может доходить до 95%. Это связано с тем, что крупные города с середины 70-х не застраивались хрущевками, исключения делались для жилых районов, примыкающих к промышленным зонам. Для райцентров хрущёвки с вариантами улучшенной планировки комнат строились еще 5-7 лет.
Строительство хрущевок выполнялось по нескольким сериям планировок:
- Первая серия 464, строились с 1960 г. по 1967 г.;
- Проект 335, здания возводились 1963-67 г.;
- Серии 1-434 и1-434С использовались в качестве базовых проектов с 1958 по 1964 г.
Положение стало исправляться только с внедрением улучшенных железобетонных панелей, с 70-х в бетон стали добавлять керамзит, улучшилось качество цемента, увеличили толщину панели, что отчасти снизило остроту проблемы.
Базовой в строительстве панельных хрущевок была 335 серия.
Отличительной особенностью планировки квартиры было параллельное расположение комнат. Преимуществом проекта считается относительно большая кухня в 6,2 квадрата и неплохие возможности для перепланировки. Существенным недостатком считается совмещенный санузел. Дверь на балкон выполнялась из гостиной.
Из панелей строились также хрущевки 464 проекта, в котором использовались те же принципы планирования, что и в 335 серии. В проекте планировкой комнат предусмотрена уменьшенная по площади кухня и появление непроходного варианта зала.
Как правило, на одной площадке размещалось четыре квартиры с разным количеством комнат, чаще всего это были варианты с одной однокомнатной, двумя двухкомнатными и одной трехкомнатной квартирой. Квартиры первого этажа отличались отсутствием балконов.
Сегодня наиболее популярная тема вариантов перепланировки панельных двухкомнатных хрущевок касается двух основных моментов – расширение помещения кухни за счет использования коридора, ведущего из прихожей на кухню и примыкающего к ванной и туалету.
В этом случае стену между ванной и кухней разбирают, саму ванну переносят на территорию коридора. Такой вариант планировки достаточно прост в реализации, так как стенки, подлежащие сносу и новой планировке, выложены из кирпича или гипсоблока. В результате кухня может быть увеличена на 1,8 м 2 .
К строительству кирпичных пятиэтажек пришли после развертывания интенсивного строительства хрущевок в районных центрах. Строить из силикатного кирпича оказалось проще, чем возить железобетонные панели за 70-80 км от ЖДК, расположенного в пригородах областных центров.
Проект №434С был ориентирован в первую очередь на возможность возведения упрощенной планировки в условиях ограниченного использования кранов и подъёмной техники. Чаще всего это были четырех и пятиэтажные дома. Планировка квартир практически копировала панельные дома. С конца 60-х появились варианты планировки, в которых комнаты располагались продольно. Отчасти это объяснялось необходимостью улучшить соляризацию помещений и уменьшить количество однокомнатных квартир в доме.
Больная тема всех хрущевок – площадь кухни уменьшилась до 5,9 м 2 , но появились лоджии и увеличилась площадь кладовки. В остальном кирпичные хрущевки менее удобны для перепланировки. В качестве одного из наиболее распространенных вариантов новой планировки предполагается перенос двери на кухню к внешней стенке здания или даже частичный снос стены. В результате помещение кухни как бы присоединяется к залу, а потребность в узком и неудобном коридоре отпадает.
Основная проблема изменения планировки комнат связывается с необходимостью регистрировать переделки в БТИ. Сделать новые документы достаточно проблемно, поэтому все переделки комнат владельцы стараются не афишировать.
Традиционно переделке в хрущевке подвергаются, прежде всего, кухня и коридор. На схеме приведен наиболее популярный вариант улучшенного планирования комнат хрущевки.
Прежде всего, уменьшена площадь коридора за счет выноса кладовки. Далее в таком варианте планировки сносом кирпичных перегородок комнаты объединяются в одну и соединяются с кухней, без межкомнатных дверей.
Вход в блок туалет-ванная комната теперь из прихожей, что достаточно удобно и практично. Пространство кухни в данном варианте при необходимости занимает до одной четвертой общей площади зала.
Существенно изменена планировка туалета и ванной комнаты. За счет совмещения удается передвинуть ванну под стену, не меняя точки установки унитаза, за которым находится канализационный стояк. От кухни к унитазу идет канализационная труба, поэтому физически невозможно выполнить планировку по-другому.
Недостатком подобного варианта планировки комнат является слишком маленькое пространство прихожей, места для обуви и верхней одежды будет достаточно, но находиться в помещении сможет только один человек. Кроме того, бытовая техника, без которой сегодня не обходится ни одна современная кухня, будет серьезной проблемой для тех, кто работает или отдыхает в зале, поэтому проем между залом и кухней придется закрывать раздвижными дверями или стационарной звукоизолирующей ширмой.
Автор статьи: Борис Купинов
Здравствуйте.
Меня зовут Борис. Я уже более 7 лет работаю прорабом в строительной компании. Я считаю, что в настоящее время являюсь профессионалом в своей области и хочу помочь всем посетителям сайта решать разнообразные вопросы. Все материалы для сайта собраны и тщательно переработаны с целью донести как можно доступнее всю нужную информацию. Перед применением описанного на сайте желательна консультация с профессионалами.
Дизайн проходной комнаты в «хрущевке. Три технологии, которые помогут обустроить дизайн двухкомнатной хрущевки Интерьер хрущевки 2 комнаты смежные
Особенностью хрущевок является очень ограниченное жизненное пространство. Поэтому все варианты перепланировок преследуют одну цель — увеличение площади. Большинство таких квартир 2-х комнатные, смежные или нет, но одинаково с очень неудобной планировкой. Мы поставили цель рассмотреть несколько проектов перепланировок, дать некоторые советы.
Для наглядности демонстрируем процесс при помощи фото и тематического видео.
Правила, которые нельзя нарушать при перепланировке
Прежде всего, нужно знать, что же считается . Под этим подразумевается изменение конфигурации или удаление перегородок. Чтобы реализовать любую свою задумку нужен проект и его согласование. Если задействованы только ненагруженые стены, то это выполнить легче, а получить разрешение на осуществление каких-то действий с несущими стенами очень проблематично.
Задумав сделать перепланировку в хрущевке, следует знать, что есть некоторые недопустимые действия и правила, нарушать, которые нельзя:
- Расширять ванную и санузел можно только за счет коридора или кладовой, но ни в коем случае за счет жилого помещения или кухни. В порядке исключения могут дать разрешение на это, если под квартирой находится нежилое помещение.
- Несущие стены двигать нельзя, максимум, что можно сделать — прорубить в них дверь, а вот окно, не предусмотренное проектом дома, добавить невозможно.

- Кухню нельзя переместить в жилую комнату, ванну, санузел.
- Объединять комнату с газифицированной кухней без перегородки с хотя бы легкой дверью между ними нельзя. Если хотите обойтись без перегородки, сделав разграничение при помощи барной стойки, то придется менять плиту газовую на электрическую.
Возможные варианты перепланировки
Две небольшие смежные или раздельные комнаты, миниатюрная кухня, прихожая и такой же санузел — это типичная 2-комнатная хрущевка. Особо неудобной является планировка в первом случае. Вариантов для перепланировки не много, но все они более удачные, чем первоначальный.
Не станет выше потолок, не изменится общая площадь, но используя идеи современного дизайна, раритетную квартиру можно изменить так, что проживание в ней станет намного красивее и комфортнее.
Перед началом перепланировки нужно решить, а затем изобразить на бумаге то, что вы хотите получить в итоге. Чтобы избавиться от неудобной изначальной планировки, специалисты рекомендуют пересмотреть функциональность комнат, где-то снести перегородки, где-то поставить новые.
При любом переустройстве по правилам основные 3 функциональные зоны всегда должны оставаться в квартире:
- кухонная;
- для совместного отдыха и общения;
- спальная.
Внимание: если вы собираетесь сносить или перемещать стены, делать проем в несущей стене, обязательно начните с получения разрешительных документов, иначе все, что вы сделаете, будет считаться незаконным. В лучшем случае заплатите штраф, а в худшем — вас обяжут вернуть все на место.
Вариант 1
Двухкомнатные квартиры в домах, постройки конца 50-х — середины 70-х годов прошлого столетия чаще всего имеют смежные гостиную и спальню, совмещенный санузел, прихожую, где трудно разминуться двоим жильцам и кухню, рассчитанную на изящную хозяйку.
Радикальный и очень популярный метод — снос всех внутренних перегородок, кроме ванны и туалета, разумеется, и организация единого большого пространства . Часто оставляют спальню, а объединяют большую комнату с кухней.
Объем расширяется и физически, и визуально, как на представленном фото.
Профессионалы советуют все-таки не увлекаться полным слиянием кухни с остальным помещением. Лучше отделить ее:
- широкой красивой ;
- прозрачной дверью-перегородкой;
- колоннами;
Если при перепланировке, превращающей панельную хрущевку двушку в стильную квартиру-студию, перенести входную дверь, то прихожую можно преобразить в гардеробную, а кухню с гостиной, как и санузел, объединить. Здесь, конечно придется получать разрешение, т.к. входная дверь находится в несущей стене.
Вариант 2
В этом варианте перепланировки двушки в хрущевке профессионалы предлагают увеличить пространство, занимаемое кухней и санузлом за счет смещения стен в сторону коридора. В результате в ванной поместится угловая ванна и душевая кабинка или, как вариант, стиральная машина. Чтобы увеличить площадь максимально не нужно разделять ванную и туалет.
Кухня также увеличится, но незначительно, правда ее всегда можно соединить с гостиной.
Если кухонную плиту, столы, навесные шкафчики расположить вдоль дальней стены, то получится довольно свободное помещение.
Проектом хрущовок предусмотрено наличие кладовки. Полезного места она занимает много. Если ее убрать, то санузел или кухню также удастся увеличить.
Вариант 3
Смелое дизайнерское решение — . Для этого удаляют балконную дверь, сам балкон утепляют. Чтобы он стал действительно теплым, поводят туда батареи отопления, но только после получения разрешения от служб, ведающих этим вопросом.
Целиком убрать границу между комнатой и балконом не удастся, ведь эта стена несущая, так что выход преображают минимально — немного увеличивают его за счет уменьшения пространства под окном, примыкающим к двери балкона, или оформляют верх в виде арки.
В результате такой перепланировки гостиная визуально увеличится, появится возможность организовать рабочий уголок или место для отдыха.
Существует много готовых дизайнерских решений по поводу объединения этих помещений.
Их можно использовать в виде подсказок.
Совет: объединив балкон с гостиной, не забывайте, что основная его функция заключается в том, что он служит аварийным выходом в чрезвычайных ситуациях. Поэтому проход на него должен быть свободным.
Вариант 4
Есть такие типы 2-комнатных хрущевок, где возможно выполнить разделение комнат коридором. В этом случае стену гостиной сдвигают, а через образовавшийся коридор делают вход в спальню, старую дверь закладывают, а на ее месте помещают шкаф.
Гостиная, конечно, уменьшится где-то на 4 м2, но это уменьшение компенсируется, когда к ней присоединяют кухню. В таком помещении хватит места и для проведения семейных праздников, и для приема гостей, и для сбора всей семьи по вечерам.
Двухкомнатную двушку, устроенную по принципу трамвая, можно перепланировать и так:
- Установить дополнительную перегородку, отделив гостиную от коридора.
- В полученном помещении устроить или .
- Длинное узкое помещение поделить на гостиную и спальню, путем установки гипсокартонной перегородки.

Вариант 5
Этот вариант приемлем при такой планировке, когда в 2-комнатной квартире для входа в спальню приходится пересекать гостиную почти по диагонали. В этом случае функциональность последней очень снижает этот проход, фактически, являющийся «мертвой» зоной.
Существует вариант, преображающий неудобную тесную 2-комнатную хрущевку в 3-комнатную:
- Стену ванной переносят вплотную к гостиной.
- Существующую дверь в гостиную закладывают и делают новую, объединяя при этом оставшуюся часть прихожей с гостиной.
- Из этой объединенной комнаты устраивают дверь в кухню.
- Дальнюю комнату разбивают на 2 спальни, перегородку, между которыми делают нелинейной, чтобы получить возможность оформить по гардеробной в каждой комнате.
Совет: при устройстве двух спален из одной длиной комнаты с одним окном, одна из них может оказаться без солнечного света. В этом случае перегородку делают не до самого потолка, а где-то метра на полтора.
Как видите, создание комфортного, уютного жилья в раритетной 2-комнатной квартире не представляется возможным без перепланировки. Но даже такое неудобное строение можно изменить чудесным образом, используя дизайнерские наработки и современные материалы.
Перепланировка в хрущевке: видео
Идеи перепланировки хрущевки: фото
Начиная с середины прошлого века, и вплоть до 80-х годов, на всей территории тогда еще существовавшего Союза, повсеместно воздвигались жилые дома, получившие народное название – хрущевки. С современной точки зрения это было бюджетное строительство, способное обеспечить большое количество среднестатистических жителей без особых запросов отдельным жильем.
Кирпичные, панельные, крупноблочные строения, претендующие на звание жилых домов, имеют одну весьма характерную особенность – планировку. Низкие потолки, небольшие и достаточно неудобно расположенные комнаты, узкий длинный коридор и имеющие микроскопические размеры кухня и санузел.
Но составляющие значительную долю всего жилого фонда, квартиры, тем не менее, пользуются определенным спросом. Их переоборудование является плодороднейшей почвой для творчества с точки зрения любого дизайнера.
Ремонт в двухкомнатной хрущевке – фото
Строения возведены таким образом, то практически ни одна внутренняя перегородка в квартире не является несущей стеной. Здесь есть где развернуться. Архитектору – показать свое мастерство, выполняя ремонт 2-х комнатной хрущевки. Художнику-оформителю – воплотить свое видение в дизайн 4-х комнатной хрущевки, или переоборудовать однокомнатную квартиру в студию.
Зачастую нам заказывают проекты глобальной перепланировки всей квартиры. Совмещают кухню с гостиной, прихожей, лоджией. Или максимально убирают простенки, создавая единое пространство для размещения необходимых элементов интерьера,
говорит ведущий специалист московской архитектурной группы АвКубе, дизайнер Светлана Анисимова.
Со слов специалиста в категории стойкого тренда остается зонирование гостиной от кухонной территории стойкой бара.
Войдя в моду лет 7-8 тому назад, этот прием считается наиактуальнейшим и на сегодняшний день. В любом случае сохраняется мода на просторные, не обремененные громоздкой мебелью помещения.
Перепланировка
Невзирая на все неудобства и бестолковость изначальной планировки, где тотальная нехватка квадратных метров ощущается на каждом шагу, квартиры в хрущевках прекрасно подлежат перепланировке.
Скромность площадей, не только жилых, но и подсобных не позволяет маневрировать современным оборудованием. Особенно это касается кухонного помещения и санузла, в частности, если ванная и санузел являются раздельными помещениями. Конечно, самым большим недостатком, в который выливается ремонт хрущевки 2 комнаты с кухней, ванной и туалетом, это вложение дополнительных финансов в демонтаж стен.
Важно знать, что перед тем, как начинать сносить внутренние перегородки, необходимо согласовать проект и узаконить перепланировку своей квартиры .
Типовым проектом перепланировки двушки, является объединение жилой комнаты с кухней и прихожей, как организация единого пространства для приема пищи и получения полноценного отдыха.
При этом стена спальной комнаты может быть перемещена, а если спальня оборудована балконом или лоджией, ее площадь можно увеличить, задействовав дополнительные метры нежилого помещения. Благодаря такому приему в сравнительно небольшой спальне можно разместить даже гардеробную.
Ремонт с перепланировкой в двухкомнатной хрущевке – фото
Разбивая высвободившуюся площадь на рабочие зоны, можно оборудовать небольшой рабочий кабинет, который отделен от зоны отдыха любым приемом с применением перегородок. Как правило, в таких случаях дизайнеры работают с прозрачными перегородками, в которых может разместиться аквариум. Но это дело вкуса каждого домовладельца. Возможен вариант применения раздвижных перегородок.
Главным рабочим моментом, когда проводится дизайн 2-х комнатной хрущевки, становится организация пространства санузла. Совместив ванную комнату с санузлом и установив душевую кабину, высвобождается место под стиральную машину, которой до этого не находилось в квартире места и возможность установки столешницы с ящиками.
При этом доля полезной площади значительно увеличивается.
К положительным сторонам данного проекта можно отнести организацию значительного пространства с трансформируемыми зонами и наличие гардеробной в спальне.
Минусом могут стать небольшие рабочие зоны кабинета и кухни, а также маловместительная за счет организации гардероба спальня.
Ремонт без сноса стен
Перепланировка может быть не единственным вариантом для улучшения, пусть небольших, жилищных условий. Грамотно проведенный дизайн 2 комнатной хрущовки с использованием раздвижных дверей позволит визуально расширить пространство.
В проектируемой двушке на двоих может быть прекрасно разрешен вопрос совмещения гостиной с прихожей. Сдвинув перегородку спальни, формируют маленькую детскую, где ребенку хватит места для игр. Образовавшееся пространство разбивают на зоны, а в коридоре можно разместить еще одну кладовку.
Переоборудовав санузел небольшой угловой ванной, в помещении прекрасно размещаются стиральная машина, унитаз и умывальник .
Основным акцентом в планировке данного типа становится образование большой зоны для кухни, которая может быть отделена от гостиной прозрачными раздвижными перегородками. При необходимости перегородки убираются, создавая единое полноценное пространство.
Такой ремонт в 2 х комнатной хрущевке имеет качественную положительную сторону – кухня и гостиная увеличивают полезную площадь за счет трансформирования пространства. А в прихожей появляется дополнительная зона для хранения вещей.
Основными недостатками такого проекта считаются наличие узкого коридора и только одной изолированной комнаты – детской.
Варианты ремонта в хрущевке
Если в двухкомнатной квартире проживает большая семья, то решением должно стать наличие двух изолированных комнат. Одна из них – родительская спальня, а вторая – детская.
Ремонт 2-х комнатной хрущевки – фото
Данный ремонт 2 х комнатной хрущевки заключается в высвобождении дополнительной площади путем совмещения кухни и коридора.
Масштабные работы по переустройству заключаются в переносе стены детской и расположении ее под углом 45º по отношению к другим стенам. В нише этой стены располагается вход в детскую комнату.
Также работы проводятся в санузле по его совмещению. Вместо ванны устанавливается небольшая душевая кабина, что существенно высвобождает пространство для установки стиральной машины и стеллажа с полками и унитаза.
В результате преобразований можно получить несколько помещений, включая две изолированные комнаты:
- детскую;
- спальню;
- санузел;
- гостиную, совмещенную с кухней и прихожей.
Положительным аспектом данного проекта являются все те же две раздельные жилые комнаты и просторное помещение ванной комнаты. полезная площадь включает наличие четырех спальных и трех рабочих мест на сравнительно небольшой, но просторной площади.
К отрицательной стороне можно отнести недостаток мест хранения вещей.
Ванная комната в хрущевке
Это критический вопрос всех малогабаритных помещений.
Его разрешением становятся уникальные проекты перепланировок и восхитительного дизайна с использованием самых необходимых элементов. Основной акцент ставится на применение многофункциональных элементов интерьера.
Кухня в хрущевке
Еще один щекотливый вопрос, требующий радикальных решений – это визуальное расширение пространства маленькой кухни. Зачастую разрешить данный вопрос помогает уникальный кухонный интерьер 2 х комнатной квартиры хрущевки.
Нередко квартиросъемщики идут на снос стены, отгораживающей кухню от гостиной, лоджии или коридора, либо создают широкий арочный проход, создающий видимость большого пространства. Сносу не подлежат несущие балки, но они прекрасно вписываются в интерьер.
Важно знать, что для совмещенной кухни необходима мощная купольная вытяжка, которая способна предохранить текстиль и мебель от впитывания кухонных запахов.
Зонирование кухни от гостиной проводят при помощи различных отделочных материалов, освещения, мебели, декора и, конечно же, не выходящей из моды стойкой бара.
Прихожие в коридор хрущевки
Учитывая габариты так называемых холлов в хрущевках, а по сути узких длинных коридоров, промышленностью и частными компаниями предлагаются многофункциональные прихожие. Помимо шкафов-купе в мебельные гарнитуры включены многофункциональные скамьи, табуретки и пуфы, одновременно служащие подставками для обуви. Мебель для прихожей, как правило, выполнена из светлых отделочных материалов, позволяющих придать помещению визуализацию простора.
Ремонт небольших комнат в 2 комнатной хрущевке с одним окном и неудобно расположенной дверью – настоящее испытание для фантазии. Тем не менее даже комната в хрущевке может стать весьма уютной. Главный враг маленьких комнат – беспорядок и нагромождение. Никакого творческого хаоса, минимум декора, мебели, колорита.
Правила выбора цветовой гаммы
Часто можно услышать, что в скромных помещениях от темных цветовых акцентов лучше отказаться, но это утверждение несколько преувеличено.
Преобладать действительно должны светлые оттенки, но если вся обстановка будет выполнена в пастельных тонах, она станет единым блеклым пятном неуютным, неинтересным, без характера. Общая палитра (цвет стен, пола, мебели, текстиль) должны дополнять друг друга.
Дизайнеры советуют подобрать три цвета: один будет основной, второй – дополнительный, а третий станет связующим звеном между первыми двумя. Он должен играть вспомогательную роль, можно выбрать более яркий, акцентный.
Совет! Мягкий рассеянный свет, заполняющий все помещение создаст необходимый визуальный объем и уют.
На площади около 10 кв метров будет вполне достаточно одной плоской люстры, у кровати располагают одну-две бра, еще один осветительный прибор на потолке или стене располагают возле шкафа или туалетного столика. Бра у кровати можно заменить на небольшие высокие настольные лампы. Любители неординарных решений могут подобрать небольшие плафоны, опущенные над тумбами с самого потолка.
Убранство и аксессуары
Окно в спальне хрущевки обычно небольшое. Здесь будут более уместны занавески из однотонной ткани, если окно находится на короткой стене – горизонтальная полоса будет кстати. Отказаться стоит от громоздких портьер, балдахинов. На картинках интерьеры выглядят уютно, на практике делают обстановку тяжелой и пыльной. Что касается способа крепления, лучше отдать предпочтение традиционным карнизам. Оригинальным решением может стать полка над окном. Она визуально поднимет стены, подарит немного места для сбора различных безделушек.
Если отказаться от радиатора под оконным проемом, пространство вокруг можно интересно обыграть, к примеру, превратить в мини кабинет или библиотеку. Для этого вокруг устанавливают не глубокий встроенный шкаф, подоконник переделывают под столешницу или непосредственно под окном сооружают небольшую лавку с подушками.
Декора, как уже было сказано, минимум. Открытые полки, лучше оставлять полупустыми, это сделает обстановку более легкой.
Очень популярным стало хаотичное развешивание множества фото разного размера, в данном случае лучше заменить их одной большой картиной или подобрать модульную.
В заключение хочется отметить, что дизайн двухкомнатной квартиры в хрущевке – задача не самая простая даже для профессионалов. Тем, кто обходится своими силами, отличными помощниками станут различные компьютерные программы, в которых можно создать практически точную картинку будущего интерьера. А вот цвета, как правило, весьма искаженные, поэтому палитру лучше присматривать на фото в интернете.
Квартиры в домах, постройки времен Н. С. Хрущева и названные так в его честь, до сих пор являются для некоторых людей способом улучшить условия проживания и осуществить мечту о владении отдельным жильем.
Возможность стильного дизайна
Общие недостатки таких домов были обусловлены необходимостью очень быстрого расселения большого количества людей из коммунальных квартир и бараков в послевоенные годы.
Поэтому их возводили ускоренными темпами, не особо заботясь о качестве строительных работ и улучшении планировки комнат.
Несмотря на недостаточную высоту стен в пределах двух с половиной метров, тесные и темные помещения, фото ремонта хрущевки на 2 комнаты убедительно доказывают, что в такой квартире можно жить с комфортом и даже создать стильный дизайн интерьера.
Особые нюансы преобразований
Небольшие размеры помещений усложняют процесс кардинальных преобразований. Это связано с тем, что часто для получения нужного эффекта требуется установка стилизованных элементов, определенной системы подвесного или натяжного потолка, создание дополнительных перегородок, ниш, арок. Для таких изменений в хрущевках просто не хватает площади. Учитывая это, проектировщики часто предлагают разные варианты ремонта.
Одним из популярных методов, с помощью которого можно увеличить полезную площадь, является смещение или снос перегородок между смежными комнатами.
Итогом такого преобразования является значительное увеличение пространства комнаты, которое уже можно стилизовать, разбить на функциональные зоны.
Разительные преобразования дает снос перегородки между одной из комнат и кухней (см. Совмещение кухни и зала).
Такой метод позволяет одновременно внести коррективы в дизайн кухни и получить пространство, так необходимое для создания улучшенной планировки.
Впоследствии его можно будет разбить на нужные зоны с помощью установки ширм, освещения, фальшперегородок, других дизайнерских решений.
Если владельцы квартиры решаются на такой вид ремонта, следует обезопасить себя от негативных последствий и неприятностей путем соблюдения ряда несложных правил:
Следует обращаться к профессиональным компаниям, владеющим знаниями в областях законодательства и строительных работ, с обязательным оформлением разрешительных документов и их утверждения в соответствующих государственных службах;
Нужно помнить, что сносить и перемещать можно только перегородки, запрещено самостоятельно вносить изменения в устройство несущих стен, системы водопровода, газоснабжения, канализации, вентиляции, отопления, загораживать доступ к газовым и другим приборам индивидуального и общего использования;
Ванные комнаты и кухни должны оставаться в проектных местах, не разрешается менять их расположение между собой или переносить в другое место, размещая над жилыми комнатами квартир нижних этажей.
При отсутствии возможностей проведения капитального ремонта в хрущевке из 2 комнат, можно добиться значительных успехов в улучшении условий жизни в ней за счет правильного оформления интерьера.
Загроможденная мебелью и прочими приспособлениями квартира не сможет обеспечить желаемые удобства и современный дизайн. Чтобы быть комфортными и стильными, комнаты должны быть просторными, светлыми, иметь достаточное количество свободного места.
Для отделки стен помещения можно применить светлое окрашивание, подобрать обои в нежных пастельных тонах. Этот простой способ необычайно эффективен для визуального расширения пространства.
Поможет в этом яркое освещение, с использованием дополнительной подсветки игровых, рабочих зон, места отдыха.
Хороший результат для зрительного расширения помещения, дает использование белых или очень светлых потолков с глянцевым, зеркальным отражением. Можно использовать гипсокартонные, натяжные, комбинированные потолки с встроенными точечными светильниками.
Чтобы усилить эффект увеличения пространства необходимо заменить старую темную громоздкую мебель на более современные образцы шкафов-купе, столов и других предметов. Желательно, чтобы они сочетались с цветом стен, сливаясь с ними.
Чтобы освободить часть площади, убрав лишние предметы, следует максимально использовать свободное пространство внутри оставшейся мебели. Для этого необходимо предусмотреть раздвижные дверцы, встроенные, веерные полки, вместительные ящики.
Очень хороший результат дает использование зеркал на стенах и отражающих поверхностей в мебели.
Незадействованные участки в углах комнат, между мебелью стоит также использовать более рационально, установив в них изготовленные под заказ столы, тумбы, навесные, угловые полки. Такое помещение будет казаться гораздо просторнее, даст возможность использовать характерные элементы выбранного направления.
Наиболее удачно помогут создать нужный вид стили, использующие небольшое количество мебельных элементов в соответствии с их практическим использованием, такие как классика, модерн, скандинавский, японский, техно, хай-тек, лофт, минимализм.
Имея желание, даже скромные возможности с помощью дизайнерских идей помогут создать, вместо невзрачной двухкомнатной хрущевки, красивое помещение, в котором будет место для работы, отдыха, детских развлечений, встреч с друзьями и родными.
Фотогалерея (26 фото)
27 июня, 2016Специализация: филологическое образование. Опыт работы строителем — 20 лет. Из них последние 15 лет руководил бригадой в качестве прораба. Про строительство знаю все – от проектирования и нулевого цикла до оформления интерьера. Хобби: Вокал, психология, перепеловодство.
Приветствую вас, любезные мои читатели!
Построенные когда-то для разрешения острого жилищного кризиса «хрущевки», сейчас воспринимаются нами, как пример наихудших, зато дешевых архитектурных решений. Да и изначальный дизайн двухкомнатной хрущевки удручающий. Такие жилища похожи как близнецы, имеют маленькие помещения и невысокий потолок.
Подобная ситуация мало кого устраивает, и выходы из нее есть.
О них я и расскажу в моей статье.
Немного истории
«Хрущевками» наш народ называет кирпичные либо панельные двух-пятиэтажные многоквартирные дома, которые строились в СССР, начиная от времен правления Н. С. Хрущева.
Возведение таких домов продолжалось от 1958 г. до 1985 г. В общей сложности было возведено 290 млн. м² подобного жилья.
- В хрущевках располагаются 1-, 2-, изредка 3-комнатные квартиры.
- Высота потолка составляет 250–260 см, в блочных зданиях некоторых из серий — 270 см.
- Площадь кухни колеблется от 4.9 м² до 7.1 (в квартирах домов серии 2-18 – до 7.5).
- Хрущевки характеризуются: чаще совмещенным реже раздельным санузлом, смежными жилыми помещениями (спальня и зал), плохой звукоизоляцией перегородок и отсутствующими лифтами.
Никто не спорит, удобством и большим объемом такие квартиры не отличаются.
Но хочу вам напомнить, что для своего времени они были счастьем для советских людей.
Например, жилищная норма (повышенная) для каждого жителя Москвы составляла всего 4 кв.метра площади.
Множество семей ютилось в коммуналках с одних на всех санузлом и общей кухней.
Какие квартиры называют «хрущевками»
Перед предметным разговором о том, как можно улучшить интерьер двухкомнатной хрущевки, я расскажу вам, что собственно придется улучшать. А именно о самых распространенных планировках таких квартир.
- Серия №1-335 является распространенным проектом панельных домов, ее строили с 1958 г. Здания имеют сборный ж/б каркас и панельные внешние стены. Подобная планировка, носит народное название «книжка». Квартиры обладают общей площадью 41 м² и смежными комнатами. Одна из самых неудачных серий.
- Серия №К-7 является первым проектом из ряда хрущевок. Спроектирована архитектором В. П. Лагутенко на базе французских панельных пятиэтажек. Планировка в народе прозвана «трамвай». Площадь помещений (общая) 48 кв. метров. Комнаты смежные, но при перепланировке достаточно легко разделяются.
- Серия №1-464 одна из наиболее распространенных, строилась с 1960 г.
Внешние стены имеют толщину 35 см, сделаны из панелей, облицованных плиткой. Перекрытия железобетонные. Очень плохая виброизоляция. Общая площадь 44.6 м².
Серия прозвана «мини-улучшенкой», т.к. похожа на планировку 9-этажек. Комнаты изолированы, кухня маленькая. Есть возможность ее увеличить до 8 м².
- Серия №438 спроектирована в киевском проектном бюро «Гипроград» (Киев) в 1958 г. Здания проекта бескаркасные, имеют бутобетонный фундамент и продольные внешние стены из кирпича. Общий объем квартиры 46 м².
Народное название — «распашонка» или «бабочка». Ее крылья похожи на 2 идентичные и симметричные комнаты. Они изолированы и обладают хорошей площадью.
О чем подумать в первую очередь
Полное переустройство хрущевской квартиры начните с самого главного вопроса: кто в ней будет жить: одиночка, бездетная семья, молодая пара с одним ребенком либо несколькими детьми. От ответа на данный вопрос самым прямым образом зависит капитальная перестройка и зонирование внутреннего пространства квартиры.
- Если семья имеет ребенка, то одна из комнат отводится под детскую, другая становится одновременно родительской спальней и гостевой.
- Для бездетной пары либо одиночки жилище логично поделить на две функциональные зоны – гостевую и спальню.
Технология 1: о возможной перепланировке
Ремонт с перепланировкой является возможностью кардинально изменить конфигурацию жилища. Это способ выправить недостатки квартиры, приобрести дополнительную площадь либо оптимально перераспределить ее. Помимо этого вы получаете шанс подогнать жилое пространство под избранный стиль интерьера.
Хочу вас предупредить сразу, что возможности перепланировки могут существенно ограничиваться техническими особенностями дома:
- его возрастом;
- расположением несущих конструкций, в том числе стен;
- местоположением окон и дверей.
В большинстве случаев перепланировка в хрущевке состоит в слиянии кухни и прилегающего к ней помещения.
![]()
Однако тут существует некая трудность.
А именно: по действующему регламенту запрещается объединять жилую комнату и газифицированную кухню без монтажа меж ними перегородки (она может быть и раздвижной).
С чего начать
Являясь владельцем жилища в многоквартирном доме, вы не имеете права делать с ним все, что захотите. Законодательством на вас наложена определенная ответственность, озвученная в Жилищном Кодексе России.
Он определяет, что такое перепланировка и переустройство в квартире.
- В первом случае изменяется конфигурация жилых помещений. Все произведенные изменения следует занести в техпаспорт жилища.
- Второй термин обозначает монтаж, замену либо перенос инженерных коммуникаций, электрического, сантехнического, вентиляционного и прочего оборудования. Такие действия также надо занести в квартирный технический паспорт.
- Перед перепланировкой и переустройством необходимо получить на них разрешение в соответствующих инстанциях.
Если вы этого не сделаете, вас могут оштрафовать и заставить вернуть все в изначальный вид.
Если вы не будете сносить несущие конструкции либо переносить кухню на балкон, в жилое помещение, то получите разрешение на перепланирование без особых проблем. Огромное достоинство «хрущевок» заключается в том, что их и внутренние стенки не несущие.
Поэтому их, после согласования и выдачи разрешения, вы можете убирать, обустраивать новые проемы для дверей и пр. Это существенно увеличивает возможности для перепланирования в такой квартире.
Подобные операции относятся к «простой перепланировке». Их легче согласовывать, чтоб получить разрешение, нет нужды делать проект. Будет достаточно все изменения внести в план квартиры, находящийся в ее техпаспорте.
Вариации перепланировок
Интерьер квартиры-хрущевки на 2 комнаты предельно неудобен: тесные комнатки с низким потолком, крохотная прихожка, малюсенький санузел. Данные проблемы и следует разрешить при помощи перепланировки.
Ниже я привожу самые распространенные ее разновидности.
- Снос перегородки, отделяющей жилую комнату от кухни. В итоге вы получаете спальню и столовую-гостевую-кухню.
- Удаление простенка меж жилыми комнатами. В результате вы получаете студийную квартиру. В качестве вариации можно выбрать демонтаж обоих межкомнатных простенков и уменьшение объема спальни при помощи гипсокартонной перегородки. Либо можно зонировать полученное помещение, отделив спальню ширмой.
- Чуть площади вы сможете добавить, застеклив балкон и расширив за его счет помещение.
- Часто перепланирование касается санузла. Если он раздельный, снеся простенок меж ванной и туалетом, вы получите совмещенное помещение и около 2 м² освободившейся площади. Еще одна вариация – добавить санузлу немного объема за счет кусочка прихожей.
- Наиболее радикальный вид перепланировки – снести все не несущие простенки (помимо санузла), затем зонировать полученное помещение при помощи дизайнерских решений либо легких перегородок.
В результате вы обретете комфортную студийную квартиру. Данный вариант походит для одиночки либо семьи без детей.
Немного о возможных вариантах перепланирования жилищ конкретных серий.
- Серия №1-335 («книжка»). Тут основная проблема – это проходной зал. Перепланировка даст возможность комнаты изолировать. Сделать это придется за счет уменьшения и так маленького объема спальни. Кухню расширить при подобной планировке можно лишь при помощи ее слияния с залом.
- Серия №К-7 («трамвай»). Она также дает возможность при перепланировке обе жилые комнаты сделать изолированными. Основной минус серии – невозможность расширить своими руками кухню, не объединяя ее с жилым помещением. Сделать же это можно не всегда.
Конечно, будут потери площади, но их можно уравновесить объемным шкафом-купе. Под него освободится участок в пространстве меж помещениями. Оставшийся после перепланирования объем уменьшенной комнаты все равно будет сравнительно комфортным.
Чтобы ее визуально увеличить, используйте дизайнерские приемы (о них ниже).
- Серия №1-464 («мини-улучшенка»). При ее перепланировании появляется возможность существенно расширить кухонную площадь и довести ее до 8 кв. метров. Для этого надо убрать кладовую (ее сменит шкаф-купе), на ее место перенести туалет, а на его бывшей площади обустроить ванную.
Технология 2: способы повысить функциональность пространства
Зонирование является простым, дешевым и эффективным методом организации пространства при высокой степени удобства проживания.
Зонирование квартиры
Оно дает возможность поделить жилище на участки, каждый из которых будет обладать своим функциональным предназначением.
- Гостевая-столовая-кухня – наиболее частый вариант при зонировании. Он воссоздается при слиянии кухни и смежного с ней жилого помещения. На линии раздела гостиной и кухни оформляется обеденная зона. Дополнительно, в одном углу вы можете выделить участочек для кабинета.

- Спальня-гостиная, такая вариация возможна и без перепланировки. В этом случае первая комната отводится под детскую. Второе помещение становится многофункциональным. Зонируется оно трансформируемой мебелью (кровать-шкаф, кровать-диван) либо монтажа перегородки, которая обеспечит интимность спальни. Перегородка позволит в одном углу устроить и рабочую зону.
- Кабинет-гостиная. Тут будет достаточно в зале отделить рабочий участок. Зонировать его можно при помощи ширмы, двустороннего стеллажа либо легкой перегородки.
- Кабинет-спальня. В данном случае в комнате отдыха отделяется рабочая зона. Хороший вариант, если кровать при этом будет складной или трансформируемой.
- Гостевая-гардеробная. Закрытый либо открытый гардероб несложно встроить в любой интерьер. Он может быть обустроен при помощи вместительного либо представлять собой участок помещения, зонированный перегородкой.
Визуальное расширение пространства
Если по той или иной причине вы не можете осуществить перепланировку и добавить к жилой площади дополнительное пространство, не отчаивайтесь.
Я ознакомлю вас с некоторыми хитростями, которые позволят визуально увеличить небольшое помещение.
- Продумывая дизайн квартиры в двухкомнатной хрущевке, особо пристальное внимание обратите на цветовую гамму ее оформления. Используйте светлые и пастельные тона – они визуально расширяют пространство. Насыщенные и яркие цвета, наоборот, его уменьшают.
- Мелкий рисунок на облицовке стен тоже зрительно увеличивает помещение.
- Потолок обязательно должен быть окрашен в светлый тон, чем ближе он будет к белому, тем лучше. Отличный вариант при этом — глянцевая натяжная облицовка. Темный цвет потолка будет психологически давить и зрительно понизит его высоту.
- Многоуровневый потолок из ГКЛ с ярким точечным освещением визуально увеличит высоту стен.
- Напольное покрытие должно быть светлым либо иметь ту же цветовую палитру, что и прочее оформление комнаты. Учтите, что яркая отделка пола визуально поднимет потолок и раздвинет стены.
- Ни в коем случае предметы мебели в хрущевке не должны играть роль акцента.
Оптимальный вариант – их обивка должна совпадать с тоном штор и стен.
Зеркала и стекло делают помещения светлее и просторнее, ибо обладают свойством отражать естественный и искусственный свет.
Однако я вас призываю блюсти меру в их применении и не применять подобные мелкие поверхности. Эффект будет обратным.
- Визуально могут расширить помещение и грамотно выбранные фотообои. Вы знаете, что такое перспектива? Она способна визуально увеличивать пространство бесконечно.
Технология 3, какой стиль интерьера выбрать
Подбирая стиль интерьера, помните, что в итоге ваших усилий вы должны получить объективно: эстетичное, практичное и функциональное пространство, которое будет восприниматься вами субъективно: как комфортное и удобное.
Перед вами может встать вопрос, оформить комнаты в едином стиле либо выбрать разные направления?
- Общий дизайн позволит пространство объединить, выстроить логичную и целостную концепцию жилища.
Подобный подход оптимален, если комнаты проходные. Хочу вас предупредить, что при этом единая стилистика может подразумевать лишь общую идею. У вас останется свобода в подборе цветовой палитры, акцентов и тенденций оформления. - В хрущевке с изначально изолированными помещениями (например, в «распашонке») либо с наполовину студийной перепланировкой (спальня и кухня, объединенная с залом) комнаты можно оформить в двух разных стилях.
- Студии чаще всего оформляются в современных стилях. Они делают акцент на функциональность интерьера и подчеркивают свободное пространство. Для комнаты отдыха актуален мягкий, камерный стиль, акцентирующий внимание на уюте и комфорте пространства.
- Практически всегда в разных направлениях оформляется жилище, имеющее детскую комнату.
Большое значение при выборе стиля интерьера имеют характеристики комнаты и возможности ее пространства.
Например, очень сложно воссоздать эстетику барокко в условиях тесной квартиры.![]()
Помещения просто «утонут», перегруженные многочисленными аксессуарами и массивным декором.
Итак, какие стили наиболее подходят для хрущевки?
Скандинавский стиль
Стиль имеет нордический характер: он лаконичный, светлый, легкий, отличается изяществом и простотой. Эстетика направления очень гибкая, ее можно воссоздать и при обилии свободного пространства и в тесной квартирке.
- Скандинавский интерьер предельно эргономичен: в нем исключаются случайные и нефункциональные элементы, все нацелено на воссоздание удобности и комфортности проживания. Пространство должно быть максимально открытым и легким, с обилием воздуха и света. Загромождать его не следует, оно должно быть сдержанным, однако без аскетизма.
- Гамма цветов: мягкие светлые тона, оптимальны пастельные. Их невесомость и воздушность хорошо будут подчеркивать сочные и яркие цвета текстиля, декоративных деталей и аксессуаров.
- Колористическая концепция скандинавского стиля основывается на совмещении белоснежных стен, натурального цвета предметов мебели из массива дерева и эффектных элементов декора.

- Облицовка поверхностей осуществляется натуральными либо максимально приближенными к ним текстурами и материалами. В интерьере должно быть много древесины. Ее можно совмещать с природным камнем, кирпичом, светлой керамической плиткой, металлом (хорошо, если он будет состарен).
- Мебель должна иметь лаконичную форму и нести четкую функциональную нагрузку. Для стиля характерно применение закрытых систем для хранения вещей.
- Еще одна особенность направления – активное использование яркого текстиля и ковров, шкур, пледов, которые усиливают чувство уюта и тепла.
Динамичный хай-тек
По сути, данный стиль — это художественное воплощение эры высоких технологий. Направление предназначено для людей подвижных, динамичных и активных. Я предупреждаю вас, что для комнаты ребенка стиль явно не пригоден, но для подростка в самый раз.
- Основы стиля: функциональность интерьера по максимуму, четкость горизонтальных и вертикальных линий, обилие в помещениях металла, пластика и стекла.

- Стены должны быть монохромными и иметь минимум фактурности, в качестве их отделки оптимальны жидкие обои либо окраска. Потолки лучше всего выбрать глянцевые натяжные.
- Полы – оптимальны глянцевые наливные или керамогранитные. Стиль не приемлет паркета и ковров. Как вариант можно выбрать ПВХ линолеум либо минимально ворсистый ковролин.
- Основная палитра: черный, белый, светлый серый либо «металлик» с крапинками ярких цветов (синий, алый, желтый, оранжевый и пр.).
- Мебель должна иметь четкую геометрическую форму, особо приветствуются нестандартные предметы, сделанные из пластика, стекла и хромированной стали. Например, стеклянные полки или столешницы правильной прямоугольной либо круглой формы, стулья с ножками из металла, пластиковыми спинками и сидениями.
- По части освещения: много встраиваемых приборов, они используются совместно с шинными либо маленькими подвесными галогенными лампами. Свет должен быть яркий и лишь белого цвета.
Осветительные приборы должны быть легкие и иметь простую форму: цилиндр, шар, усеченный конус, прямоугольник. - Декор должен быть сдержанным с минимумом аксессуаров, приветствуются абстрактные картины, постеры, фотографии в тонких рамах из металла.
- Стиль предполагает использование большого числа бытовой техники: домашнего кинотеатра либо большого плоского телевизора, компьютера с монитором из пластика и украшенным светодиодной лентой кейсом и пр.
Кантри южной Франции – Прованс
Дизайн 2 комнатной квартиры в хрущевке можно оформить и в стиле Прованс. Это теплое и нежное направление возникло на юге Франции, и является разновидностью кантри и этнического стиля одновременно. Оно хорошо подходит для оформления небольших помещений.
- Цветовая палитра в направлении насыщенная, однако, не яркая. Предпочтительны сдержанные, приглушенные тона: пастельные, белый, молочный, бежевый, оливково-зеленый, охристый, цвет морской волны, лавандовый и светлые оттенки синего.
При этом поверхности должны смотреться чуть выгоревшими, выцветшими под жаркими лучами солнца южной Франции. - Интерьер должен быть светлым, насыщенным естественным светом. Стены часто окрашиваются, нередко – специально грубо белятся. Изредка для облицовки стен применяются бумажные обои.
- На полах приветствуется настил из грубых досок либо керамической плитки. Потолок должен быть крашенным, подвесные и натяжные конструкции на нем исключены.
- Мебель должна быть крашеной, действительно старинной либо состаренной искусственно. Добиться ее вида, как будто она прослужила много десятков лет, можно при помощи разных эффектов. Например, «облупленной» краски, «следов» древоточцев, сколов. Особо ценятся по-настоящему старинные предметы, например, старый сундук либо комод, которые служили не одному поколению.
- Шторы и занавеси должны быть легкими, воздушными.
- Аксессуаров и элементов декора должно быть много: рюшей, ришелье, керамических фигурок, картин с пасторальными мотивами в простых рамах, шитья, как живых, так и искусственных цветов.

Функциональный минимализм
На это европейское направление оказал самое прямое влияние японский стиль.
- Основой его эстетики являются элегантность, простота, лаконичность форм и функциональность. В интерьере минимализма рациональность доминирует над декоративностью.
- Пространство четко геометрично. Его гармония, по версии минимализма, заключается в безупречной практичности, в которой все элементы обладают функциональным назначением.
- Палитра цветов: чистые тона красного, белого, черного, серого. Стоит заметить, что белый, как правило, служит фоновый цветом, а черный и серый применяются в качестве дополняющих контрастов.
- Стенки покрываются декоративной штукатуркой, красятся, отделываются жидкими обоями либо панелями из ПВХ. Верх помещений облицовывается простыми ровными конструкциями из ГКЛ либо натяжным потолком со встроенными светильниками. Пол покрывается монохромным настилом: пробкой, досками, ламинатом, паркетом. Подойдет и однотонный ковролин с самым низким ворсом.

- Эстетика минимализма не отвергает полностью декорирование. Его одиночные, предельно выразительные элементы привнесут в оформление помещений эмоциональность, оживив интерьер. Так, вы можете сыграть на контрастах, применив необычные, экзотичные предметы в аскетичном окружении.
- Инструкция насчет мебели. Она должна иметь четкую, простую, правильную геометрически форму с идеальными пропорциями. Предметы функциональны, с легкими силуэтами.
- Приветствуется металл и стекло: металлические стеллажи и ножки мебели, стеклянные полки и столешницы. Мягкая мебель должна иметь прямоугольную форму и натуральную обивку (лен, хлопок).
Обратите внимание! Мебели в минимализме не должно быть много. Более того, она словно растворяется в окружении. Например, стеллажи, полки, встраиваемые шкафы должны смотреться неотъемлемой составляющей стен.
Изысканный арт-деко
Арт-деко преобразует хрущевку в изысканное и современное пространство, совмещающее в себе классику и новые веяния.
- Колористическая концепция стиля – эксперименты и творчество. Как фоновая основа более всего распространены такие тона: сапфировый, пурпурный, изумрудный, рубиново-красный. Дополняющие цвета (золотистый, синий, черный, металлик) применяются в качестве яркого контраста либо оттеняют фон.
- Арт-деко активно использует дизайнерский прием акцентирования «яркое пятно». Им может выступать одна стена либо крупный предмет мебели.
- Для направления характерно обилие элементов декора. Особо востребованы вещи, сделанные в одном экземпляре. То есть эксклюзивные предметы и украшения. Их материалы должны быть дорогие: бронза, кожа змеи и крокодила, бивни слона, полудрагоценные камни, редкие кристаллы, рог носорога, дерево экзотических пород (абаш, айле, эбеновое, сандаловое, красное дерево и пр.).
- Помимо этого интерьер могут украшать зеркала, недешевый фарфор, расшитые подушки, деревянная инкрустация, статуэтки, этнические поделки из Азии, Африки, Южной Америки.
Они прибавят дизайну эмоциональности и экспрессии.
Хочу особо отметить, что интерьер в стиле арт-деко должен навевать ощущение незавершенности композиции. Он как-бы позволяет продолжать декорирование и оформление пространства и дальше.
Вывод
Как вы могли убедиться, даже в маленькой и низкой хрущевке можно обустроить уютное и комфортное семейное гнездышко. Желательно для этого квартиру перепланировать. Если это невозможно, то воспользуйтесь описанными мной дизайнерскими приемами.
Видео в этой статье продолжит тему наглядными сведениями. Не стесняйтесь публиковать свои вопросы в комментариях, я с удовольствием отвечу на них.
Засим прощаюсь, и успехов вам в ваших начинаниях!
27 июня 2016г.Если вы хотите выразить благодарность, добавить уточнение или возражение, что-то спросить у автора — добавьте комментарий или скажите спасибо!
История «хрущевки» Планировка квартиры
Макет «хрущевки» в анонсах популярных газет «Подарок», «Руки в руки» или журнала «Вся недвижимость».
Квартиры и дома серии 1-335 обозначены как макет «Хрущевки», «Хрущевка» или просто «хр-ч» Что скрывается за этими названиями и сокращениями?
Планировка «хрущевка»: история «хрущевки» Планировка квартиры
Крупнопанельная планировка хрущевки серии 1-335 — самая распространенная планировка домов в России.Наибольшее их количество построено в Санкт-Петербурге, но сейчас Омск является лидером по количеству эксплуатируемых домов такой планировки.
В данной планировке домов также предусмотрены дома утепленные минеральной ватой, которые внешне отличаются отделкой фасада неглубокой керамической плиткой и имеют сине-голубой цвет. Это отличие делает их немного привлекательнее внешне, но внутри они обычные «хрущевки».
Планировка дома «Хрущевка» серии 1-335 имеет внешнее сходство с серией домов 1-507, носящих народное название «брежневки», с более удачной планировкой квартир и кухни, площадью Около 7 кв.метров.
Примечательно, что начавшееся в 1959 году строительство «хрущевок», предназначенных для Москвы и Санкт-Петербурга, было приостановлено в 1966 году из-за несоответствия климатическим условиям.
Но, как ни странно, это не помешало провести модернизацию домов данной серии (1-335АК и 1-335Д, 1-335К, 1-335А) и возвести их по всей стране вне зависимости от климатических условий до конца 1980-х годов.
Сейчас в той же Москве, по мнению некоторых экспертов, снос хрущевок завершится примерно в 2015 или 2017 году.В соседнем Санкт-Петербурге проводится капитальный ремонт домов этой серии, некоторые также отправлены на снос.
Что касается Хабаровска, то скорее всего планировка квартир такого типа достаточное количество времени будет оставаться актуальной, потому что сносить их бизнес невыгодно …
Расположение дома в Хабаровске с планировкой «хрущевка»
Планировка квартир «Хрущевки» также включает в себя самые, пожалуй, самые плотные застройки на территории 1-го микрорайона.Также есть в ДОСе, в районе Хабаровск-2, 38-я и 51-я школы, в микрорайоне Южный и другие.
Характеристики планировки дома «хрущевки»
Широкие двустворчатые квадратные окна квартир, железная четырехскатная крыша (что-то вроде технического этажа), может быть вообще плоская и без мансарды (технического этажа нет), либо плоско-скатная (разновидность технического этажа).
гибридный).
Окна на крайних торцевых панелях. Пожарная лестница, без общего противопожарного балкона, примыкает к торцу хрущевского дома.Планировка дома предусматривает размещение на участке четырех квартир. Планировка квартир: 1-комнатная, 2-комнатная. 3-комнатные квартиры с высотой потолков около 2,55 метра.
Планировка квартиры продумана таким образом, что центральная комната «хрущевки» всегда проходная. Туалет и ванная в «хрущевке» совмещены. Теплоснабжение и водоснабжение — централизованное. Планировка дома не предусматривает наличие мусоропровода и лифта.Этажность «хрущевки» — помимо 5 этажей есть еще 7 и 9 этажей, реже бывают дома в 3 и 4 этажа.
На кухнях «хрущевок» установлены газовые плиты, иногда газовые водонагреватели … Вентиляция предусмотрена планировкой квартир в «хрущевках» — естественная вытяжка. В планировке дома есть балконы.
Плюсом планировки квартиры, помимо балкона, можно считать кладовую.Теплоизоляция не очень хорошая, потому что панели, из которых собирается дом, полые, наполненные стекловатой.
Количество входов в дом, предусмотренное планировкой — от трех.
Все квартиры, кроме угловых, выходят в одну сторону согласно планировке дома. Снаружи дом либо облицован мелкой керамической плиткой (варианты цвета: бело-голубой, светло-серый), либо не облицован плиткой (варианты цвета: серый, белый, желтый, бежевый).
Внешний вид дома серии 1-335 «Хрущевка» фото:
Для справки
В советский период, в 1961 году, стоимость строительства крупнопанельных каркасных домов по схеме «хрущевка» была самой низкой за всю историю и составляла 96 рублей за квадратный метр.
Планировка домов «Хрущевка» серии 1-335 была признана некоторыми специалистами самой неудачной из всех разработанных при Хрущеве.
Преимущества планировки
- Наличие кладовых и балконов.
На самом деле плюсов может быть больше, хотя раскладка типовая. но аромат есть всегда.
Этот раздел будет пополняться по мере поступления отзывов от читателей, проживающих в домах и квартирах данной планировки.
Я уверен, что у них есть что сказать 🙂
Недостатки компоновки
- Очень низкая теплоизоляция стен, особенно чувствительная в нашем климате. Тонкие перегородки между комнатами;
- Потолки также имеют небольшую шумоизоляцию;
- Комбинированная ванна с туалетом;
- Тесные коридоры;
- Малая габаритная метража;
- Цокольные этажи без балконов;
- Маленькие кухни;
- Без изолированных помещений
Некоторые из перечисленных недостатков планировки квартиры в «хрущевке» можно видоизменить — расширить кухню, сделать комнаты изолированными, если позволяет их расположение.
Фото планировки квартиры в хрущевке
Планировка квартир состоит из 1-х, 2-х и 3-х комнатных квартир со следующими характеристиками по площади:
1-комнатная «Хрущевка» — общая площадь: 30 кв.м., жилая: 18 кв.м., площадь кухни: 6,3 кв.м.
Планировка 1 комнатной квартиры «хрущевка» фото:
2-комнатная «хрущевка» (вариант 1) — общая площадь 41 кв.
м., жилая 26 кв.м., площадь кухни 6.9 кв.м.
Планировка 2-х комнатной квартиры «хрущевка» фото:
2-комнатная «хрущевка» (вариант 2) — общая площадь 45 кв.м., жилая 35 кв.м., площадь кухни 6.3 кв.м.
Планировка 2-х комнатной квартиры «хрущевка» фото:
3-комнатная «хрущевка» (вариант 1) — общая площадь: 55 кв.м., жилая: 42 кв.м., площадь кухни: 6.3 кв.м.
3-комнатная «хрущевка» (вариант 2) — общая площадь: 58 кв.м., жилая: 48 кв.м., площадь кухни: 6.3 кв.м.
Планировка 3-х комнатной квартиры «хрущевка» фото:
Всем, кто интересуется поэтажным планом квартиры в «Хрущевке», можно ознакомиться на этом типовом плане.
Планировка квартир на этаже хрущевки:
В результате рассмотрения планировки дома серии 1-335 типа «хрущевка» можно сделать вывод, что когда-то это было востребованное и актуальное жилье, так как большая часть населения ютилась в деревянных бараках и коммуналках.
квартиры.
Кстати, теперь ютятся, но уже меньше. А спрос на жилье продолжает оставаться высоким, поэтому квартиры с «хрущевской» планировкой востребованы и по сей день.
Дедюхова Полина
серии 1-335 с неполным каркасом представляет собой 5-ти этажный жилой дом с продольными несущими стенами. Конструкции изготовлены на заводах ЖБИ Минтранса СССР. Конструкции 335-й серии выпускались на ДСК с 1960 по 1968 год.
Серия широко распространена в космосе бывшего СССР … Первый дом из этой серии был построен в Череповце. В Москве 335 серию построили из импортных конструкций; в квартальных постройках встречается в виде отдельных включений.
Наибольшее количество домов этой серии построено в Санкт-Петербурге, где их производил Полюстровский ДСК — 289 домов, всего 1442 секции в Красногвардейском и Калининском районах города. В Омске в эксплуатации находится 170 домов серии И-335ПК с неполным каркасом (более 2% от общего объема этой серии по стране).
Самая массовая серия жилых домов в Казахстане.
В Туле изначально было решено строить дома индивидуальной серии, строители столкнулись с рядом технологических трудностей. Поэтому было принято решение внедрить собственные панели для строительства, и так родилась серия 1-335АТ (Тула). Панели для него производились на двух заводах — Алексинском ЖБИ и ЗКД. Первым районом, где начали строить эти дома, был Пролетарский.
Внешний вид 1-335 характеризуется широкими окнами квартир (двустворчатые выглядят квадратными), вытянутыми окнами на подъездах почти во всю высоту панели. Торцевые стены состоят из 4-х панелей с окнами в конце. Обычно в одном конце дома находится внешняя пожарная лестница. Для домов, построенных в Москве, характерна железная 4-х скатная крыша. В другой модификации, в том числе построенной Полюстровским ДСК (он тоже есть в Подмосковье), это может быть плоская крыша без мансарды.
Несущие стены продольные (обозначено буквой I в названии серии).
Количество секций в оригинальной модификации — 3,4,5,6,8,10. На участке 4 квартиры. Квартиры 1, 2, 3-комнатные, высота потолков — 2,55 м. Центральная комната в 3-х комнатной квартире — проходная. Санузел совмещен. Централизованное водо- и теплоснабжение. Нет ни лифта, ни мусоропровода.
Технические характеристики частичной рамы серии 1-335
| Материал стенки | панель |
| Количество секций (подъездов) | из 3 |
| Этажность | 5, реже — 3, 4.Жилой цокольный этаж |
| Высота потолка | 2,54 г. |
| Лифт | № |
| Балконы | во всех квартирах |
| Количество квартир на этаже | 4 |
| Годы постройки | 1958-1966 |
| Всего построено домов | около 500 (в Москве — 76 с общей площадью квартир около 200 тыс. Кв.м) |
| Большинство домов серии 1-335 построены в Ленинграде (преимущественно на северо-востоке города: Гражданка, Охта, Полюстрово), а также. Дачное. За годы построено несколько кварталов. Череповец, Ульяновск, Волгоград, Новосибирск, Омск, Красноярск и др. (В том числе в нескольких городах Беларуси). В менее значительных объемах серия построена в Москве: 3-5 домов в районах Перово, Соколиная гора, Бабушкин, Дегунино, Кунцево, 1-2 дома в ряде других районов. В городах Подмосковья дома серии 1–335 строились единичными партиями, большая часть — по годам. Щербинка и Подольск | |
Снос домов серии 1-335 проводится в Москве с конца 1990-х годов. выборочно (формально серия не входит в список сносимых в первую очередь, так как она не входит в число самых распространенных серий хрущевок в Москве, а в базах БТИ часто встречаются 5-этажные дома серии 1-335. ошибочно причислены к строениям невыносимой серии 1-515 / 5). Снос всех домов серии 1-335 в Москве завершится, по оценке экспертов www.RussianRealty.ru, в 2015-2017 годах. | |
| В Санкт-Петербурге дома 1-335 серии находятся на ремонте (капитальном ремонте), некоторые кварталы намечены к сносу. | |
| Площади 1-комнатных квартир | общая: 30-31 кв.м, жилая: 18 кв.м, кухня: 6.3 кв.м. |
| Площади 2-х комнатных квартир | общая: 41-45 кв.м., жилая: 26-35 кв. м, кухня: 6,3-6,9 кв. м. |
| Площади 3-х комнатных квартир | общая: 55-58 кв.м, жилая: 42-48 кв.м, кухня: 6.3 кв.м. |
С 1964 года вводятся доработанные версии серии 1-335: 1-335А, 1-335К, 1-335АК, 1-335Д с улучшенными планировками квартир, улучшенной конструкцией (полный каркас, лучшая внешняя теплоизоляция. стены) и в 9-этажном исполнении. Дома доработок в Москве не строили | |
| Ванные комнаты | совмещено во всех квартирах |
| Лестница | без общего противопожарного балкона |
| Мусоропровод | № |
| Тип кухонной плиты: газовая.Вентиляция: естественная вытяжка, блоки в санитарных кабинах (санузлах). | |
| Стены домов типовой серии 1-335 | Наружные стены: двухслойный железобетон толщиной 30 см или однослойный керамзитобетон толщиной 40 см. Перекрытия: массивные железобетонные плиты толщиной 10 см. воздушный зазор между ними равен 4 см. |
| Несущие стены | колонны и внешние стены (неполный каркас) |
| Тип секции (подъезды) | рядный (рядовые, набор квартир на этаже: 3-2-1-3, 2-2-3-2), торцевой (набор квартир на этаже: 1-2-2-3) . Все квартиры, кроме угловых, выходят в одну сторону. |
| Количество ступеней в секции (входе) | 7 (в рядных участках), 6 (в концевых участках). Ширина ступени (расстояние между двумя соседними несущими стенами, ширина пролета): 260 см, 320 см. Ширина корпуса: 11,6 м. |
| Облицовка, штукатурка внешних стен | Плитка облицовочная квадратная неглубокая (Санкт-Петербург), немелованная (Москва, Санкт-Петербург, др. Города) |
| Варианты цвета внешней стены | плитка: сине-белая, светло-серая, без подкладки: серая, белая, желтая, бежевая. |
| Тип крыши | 4-скатные (Москва), плоско-односкатные (другие города) |
| Отличительные особенности | 5-ти этажные панельные дома стандартной серии 1-335 узнаваемы по большим, полноразмерным панелям, окнам в 4 горизонтальных створки на лестнице, торцам 4-х панелей с 2-мя рядами окон.![]() |
| Достоинство | наличие балконов, кладовых |
| Недостатки (помимо стандартных хрущевок) | крайне низкая теплоизоляция внешних стен, тонкие межкомнатные перегородки, совмещенные санузлы даже в 3-х комнатных квартирах |
| Производители | Полюстровский ДСК (Ленинград), Вологодский ДСК, Петрозаводский ДСК, Тульский ЗКД, Завод крупнопанельных деталей №6-ДСК-1 (Новосибирск), Красноярский завод ЖБИ №1, Омский завод ЖБИ №6 и др. |
| Дизайнер | Проектный институт «Горстройпроект» (Ленинградский филиал) |
| Разновидности типовых проектов серии 1-335 (различаются только количеством секций): | 1-335-1, 1-335-2, 1-335-3, 1-335-4, 1-335-30, 1-335-30ш |
Стоимость строительства 1 кв. М жилой площади для каркасно-панельных домов серии 1-335 составила 95 руб.в ценах 1961 года — самый низкий показатель за всю историю промышленного домостроения в СССР. | |
| По мнению ряда экспертов, 1-335 — самая неудачная из всей всесоюзной хрущевской серии. | |
| 1-335 — единственная серия домов, встречающаяся как в Москве, так и в Санкт-Петербурге (при этом фасадные и кровельные решения существенно различаются) | |
| RussianRealty.ru рейтинг стандартных серий 1-335 | 2.9 (по 10-балльной шкале) |
В подтверждение тезиса о том, что в каркасно-панельных домах неважно, из каких деталей и элементов сделан каркас, а нормативная прочность будет определяться точкой крепления горизонтальных конструкций к ограждению, рассмотрим пример. с крупнопанельным домом серии 1-335 с неполным каркасом. По внешнему виду относится к промышленной серии со сроком службы 150 лет.
Однако сама конструкция таких жилых домов, которые возводятся с начала 60-х годов прошлого века, и, главное, качества, проявленные при длительной эксплуатации, позволяют отнести такие сооружения к капитальной группе. «Каркасно-панельное».
Внешний вид серии 1-335 с неполной рамой | Торцевой план типового сечения, ориентация в широте |
| | |
| План и разрез серии 1-335 с неполным каркасом | План обыкновенного типового сечения широтной ориентации |
При реализации комплексной застройки в 60-х годах прошлого века эти здания возводились как обрамление строящегося жилого массива, возводились также внутри микрорайона, но на месте привязки высотных зданий. Доминанта подъема — будущие 9-этажные дома с лифтами и мусоропроводами, массовый ввод которых начался в 1968 году.
В 60-х годах прошлого века, в условиях «холодной войны», действовала государственная жилищная программа, в ходе которой в каждом населенном пункте, помимо мобильного переселенческого фонда, имелся комплекс конструкций для крупнопанельного жилья, смонтированный. по типу каркасно-панельный.
Считалось, что здания, использованные в ходе массовой застройки в пятиэтажном виде, будут эксплуатироваться не более 15 лет. Потом их пришлось разобрать и перемонтировать в другом месте, уже с уменьшением этажности — как трехэтажные дома.
После 10 лет эксплуатации они должны были быть вывезены в деревню и собраны в виде двухквартирных одноэтажных и двухэтажных коттеджей со сроком службы 150 лет.
Для облегчения сборки и разборки в этих домах колонны не устанавливались вдоль наружных продольных стен. Ряд колонн для поддержки перекладины плит перекрытия шел только по внутренней продольной стене.
Таким образом, перекладины, опирающиеся на столбики внутреннего ряда одним концом (выделены красным на рисунке), другим концом опираются непосредственно на панель ограждения.
Вот и надо разобраться. Почему каркасно-панельная система в России (где отопительный сезон в среднем 9 месяцев) имеет такую низкую нормативную долговечность, независимо от того, что в данном случае собирается из предварительно собранных прочных элементов, рассчитанных на три цикла сборки-разборки.
Как известно, тепло в комнате понимается снизу вверх. Теплотехнический расчет сводится к определению толщины ограждения за торцом перекрытий.
В данном случае в качестве ограждающих конструкций использовались двухслойные панели толщиной 150 мм.Это не прошло по требованиям теплотехнического расчета. Сборка фрамуги — наружная панель ограждения постоянно промерзала. Расчет заключался в том, что для плановой долговечности физический износ панелей ограждения в циклах замораживания-оттаивания не будет превышать допустимый ремонтопригодный уровень.
Однако на практике все произошло иначе. Изменившаяся политика сделала невозможным продолжение плановой эксплуатации этих своеобразных «разборных» конструкций.
На стройплощадке, где по подсчетам советских времен были статьи «Временные здания и сооружения», в которые входили постройки до трех этажей, принято говорить: «Нет ничего более постоянного, чем что-то временное».
Конечно, очень оригинальная идея расселения жилья через 15-10 лет была утопией, учитывая, что в качестве основного инструмента жилищной политики были выбраны здания со стандартной долговечностью 150 лет.
В результате конструкции с долговечностью 30 лет, которые следовало разобрать и собрать заново в середине 70-х годов прошлого века, до сих пор стоят среди конструкций с нормальной прочностью, внешне ничем от них не отличаясь.
Таких домов в Ижевске 46, они стоят прямо среди аналогичных домов, где на внешних стенах размещены колонны, так что нормативная прочность их далеко не исчерпана, а в самом здании нормальный микроклимат.
Сегодня огромную опасность для жителей представляют крупнопанельные жилые дома с неполным каркасом.
К концу 80-х гг.
Все эти сооружения уже находились в предаварийном состоянии. Разрушение этих построек может произойти в любой момент по непредсказуемому сценарию — из-за хрупкого разрушения металлических закладных деталей, которые за период эксплуатации сильно корродировали.Реконструкция подобных построек предполагалась в первую очередь в середине 80-х годов прошлого века.
В настоящее время они еще не реконструированы, хотя все сроки соблюдены. При этом власти сознательно сносят не эти дома, а аналогичные, имеющие нормативный срок 150 лет, но расположенные в более привлекательных для современной застройки местах.
По результатам внешних осмотров, проведенных в советское время, показатели нормативной прочности горизонтальных выступающих элементов были значительно снижены — до 25 лет.Это навесы, балконы и лоджии.
В первой массовой серии использовался металлический забор на выступающих элементах. Практика показала, что в процессе теплообмена именно на контакте с «мостиками холода», которыми будут являться все металлоконструкции, происходит основная концентрация замерзающей конденсирующейся влаги.
При замерзании капли конденсата расширяются, образуя полости и впадины. После 10-15 отопительных сезонов происходит необратимая поломка.
Без учета этих данных предпринимаются попытки усилить выступающие железобетонные элементы именно с использованием металлических деталей и арматурных конструкций.
Основные преимущества серии 1-335
Минимальное количество несущих внутренних элементов, позволяющее реализовать принцип «гибкого планирования»;
Высокая технологичность изготовления и монтажа конструкций;
Проектирование технического метрополитена, что позволило ритмично в течение года вводить жилье в северных регионах страны.
Общая информация о домах серии 1-335
Назначение | Жилой дом |
Этажность | 5 этажей, цокольный этаж, подвал |
размеры | 67. |
Жесткость пространства | Продольное направление — продольные несущие стены, перекрытия. Поперечное направление — внешний конец, поперечные стенки |
Ср площадь квартир | 39,7 м 2 |
Описание силовых конструкций серии 1-335
Фонды | Лента сборная железобетонная |
Стены | Сверхпрочная бетонная двухслойная стеновая панель |
Разделы | Гипсокартон t = 80 мм |
Перекрытие | Пустотные плиты железобетонные |
Покрытие | Скатное, деревянными стропилами из досок «по краю» |
Лестница | Рельсы из сборного железобетона |
Недостатки серии 1-335
Недостаточная жесткость узла заделки балконной плиты в стеновую панель, плиты перекрытия;
Неправильное размещение слоев в двухслойной стеновой панели;
Ненадежная гидроизоляция швов стеновых панелей, из-за чего обследование подтвердило негерметичность швов;
Несоответствие объемно-планировочных и конструктивных решений квартиры современным требованиям.
В настоящее время данные конструкции уже не подлежат демонтажу и требуют срочных работ по реконструкции с усилением всего здания в целом:
Устройства наружного каркаса с выпуском опоры ригеля для усиления и разгрузки существующего каркаса здания;
Резка изношенных балконных плит;
Расширение проемов в наружных стеновых панелях, заделка в них вертикальных и горизонтальных стыков площадок;
Замена полов, оконных проемов, дверных коробок.
Дополнительно требуется плановая реконструкция входных групп с устройством пандусов для детей и инвалидных колясок, установка пристроенных пассажирских лифтов и мусоропроводов.
В ходе восстановительных работ все жители, кроме жителей первых этажей, получат значительные льготы. Для них еще в советское время были разработаны специальные проекты реконструкции с устройством отдельных входных групп.
Нетрудно заметить, что устройство пристроенных входных групп с лифтами и мусоропроводами, пристроенных лоджий по контуру здания — расширяет корпус, позволяет отстегнуть промерзший примыкание ригеля к забору.
Данное решение позволяет не только укрепить неполный каркас, но и создать новые теплоэффективные ограждающие конструкции, высушить и отремонтировать старые конструкции ограждений, восстановить нормальный микроклимат в конструкции.
Проекты редевелопмента серии 1-335 с незавершенным каркасом при реконструкции с устройством пристроенных входных групп с лифтами и мусоропроводами и пристроенными лоджиями
Существуют различные решения, предусматривающие частичную разборку панелей ограждения и установку навесных конструкций, расширяющих тело конструкции по всему продольному контуру.Есть более экономичные варианты, где только пристроенные входные группы и пристроенные лоджии армируют неполный каркас здания снаружи.
При расширении здания возникают проблемы с инсоляцией помещений из-за малой высоты этажа первого массового ряда. Однако этот вопрос решается при обустройстве двухуровневых квартир с прихожей, имеющей «второй свет».
| | |
| | |
| Проект реконструкции микрорайона крупноблочных домов застройки 1964 года в Ижевске со значительным уплотнением застройки за счет соединения трех жилых домов в наиболее изношенной торцевой части — в единый жилой ансамбль с двухуровневыми квартирами | |
Существующие подходы к реконструкции крупнопанельных домов с внешней изоляцией не принесли положительных изменений.В конструкциях наблюдался усиленный рост черной плесени в верхних углах жилых помещений, то есть процесс промерзания и разрушения конструкций не замедлялся, а усиливался.
Попытки усилить опорный угол перекладины на ограждениях наружной панели изнутри , с помощью подобия устройства внутренней рамки — также не дали результатов. В советское время были попытки укрепить эти узлы лагами, установленными по углам.
Внутренний каркас без собственного фундамента на основе плит перекрытия только косметически решает проблему замороженных продуктов, при условии, что он обтянут листами гипсокартона.При этом следует учитывать, что большинство обследованных ферм еще в 80-х годах имели недопустимый прогиб.
В полукаркасных конструкциях серии 1-335 при установке пристроенной лоджии планировалось выполнить узел крепления головки ригеля для передачи нагрузки от изношенных узлов на внешний каркас по периметру всей конструкции. В связи с тем, что мероприятия по реконструкции, запланированные на конец 80-х годов, не были проведены, в настоящее время при проведении работ по реконструкции необходимо демонтировать балконные плиты и козырьки.
Устройство отапливаемых лоджий должно было выполнять следующие функции:
— создание дополнительной термозащиты ленты перед ремонтом и герметизация стыков панелей;
— улучшенная инсоляция внутренних помещений за счет трехстороннего естественного освещения;
— повышение комфортности жилого помещения;
— создание жесткого внешнего каркаса по всему периметру здания.
Все эти мероприятия должны быть выполнены в короткие сроки с полным переселением жильцов на постоянной или временной основе.Их реализация поможет снизить социальную напряженность в обществе и решить жилищную проблему экономически выгодным для всех участников процесса восстановления.
Текст мой. Итак, дальнейшая эволюция конструкции жилых домов привела к появлению «полукаркасной» схемы, и по этому принципу ленинградский филиал Горстройпроекта разработал серию 1-335, которой суждено было стать «хитом». «. Отличить серию несложно, достаточно 1) посмотреть в торце дома и отметить расположение окон.2) посмотрите на дом со стороны лестницы. Сплошное остекление лестничных клеток (4 ряда рам на панель или стеклоблоки) — также знак 1-335. Эти дома строили повсюду от Калининграда до Тихого океана. Для каждой климатической и сейсмической зоны разрабатывалась своя модификация проекта. Как ни странно, 1-335 — очень редкий гость в Москве. Всего 20 фото.
Фото 1 дом серии 1-335 в стадии строительства
В столицах дом строили несколько в ином облике (к тому же в Москву железобетонные изделия привозили из других регионов).
Внешне есть отличия в конструкции крыши.
Фото 2. Санкт-Петербург. Крыша плоская, по конструкции идентична серии OD. Большинство домов отделано серой керамикой.
Фото 3. 1-335 в Москве. Крыша — двускатная … Панели всегда красятся.
Стоимость строительства 1 квадратного метра жилой площади для каркасно-панельных домов серии 1-335 составила 95 рублей. в ценах 1961 года — самый низкий показатель за всю историю промышленного домостроения в СССР.Что такое «полукадр» видно из рисунка. Продольную несущую стену заменяют колонны с несущими балками. Внутренние перегородки такие же (кроме межкомнатных) — легкие, гипсобетонные. Причем сечение колонн в процессе эволюции серии было уменьшено (1-335 k).
Фото 4. Схема «полурам» серии 1-335
Планировка квартир — «шаг назад» по отношению к К-7 (од). 2-комнатные и некоторые 3-комнатные квартиры с проходными комнатами, санузлами совмещенными.Высота потолка — необходимый гигиенический минимум 250 см.
Правда, во всех квартирах — балконы … Начиная с 1-335 в лексиконе советских людей появилось определение «свекровь» — это кладовая в «двушках» и «трех рублях» — достаточно большого размера.
Фото 5. Макет 1-335.
Фото 6. «свекровь» — целых 2,4 м2
Фото 7. Вариант мебели 1-335 от дизайнеров. Учтите, что общая (проходная) предназначена для нежилого назначения.
Дома серии 1-335 старались разнообразить и «оживить» квартал художественной окраской домов и простым декором (по «красной» линии улиц).
Фото 8.
Или использование мозаичных панно в домах с керамической отделкой фасадных панелей
Фото 9.
Или применение стеклоблоков при остеклении лестниц
Фото 10.
В ходе эволюции серии торцевые окна сдвинулись ближе к центру здания (таких домов нет ни в Москве, ни в Питере).Петербург).
Фото 11 «переходный» вариант 1-335 в Томске
Фото 12.
Проект 1-335А-2. Торцевые окна «закреплены» на новом месте.
Беда 1-335 — разрушение балконных плит тоже побеждено
Фото 13. Кирпичные консоли балконов
Еще во времена СССР эксплуатация домов серии 1-335 некоторых ДСК выявила серьезные проблемы с качеством железобетона
Фото 14.Укладка фасадных панелей
Что требовало серьезного ремонта
Фото 15.
Обсуждение и дополнительная информация на форуме —
Жилые многоквартирные дома серии 1-335 имеют каркасно-панельную конструкцию. Проект принадлежит разработчикам Ленинградского конструкторского бюро, окончательную доработку и сдачу в строительство осуществил НИИ «ЛенЗНИИЭП».
Дом серии 1-335 имеет 5 этажей. Фасад узнаваем по четырехстворчатым окнам на лестничных клетках, торцам, состоящим из четырех панелей, а также по окнам в два ряда.
В истории хрущевского домостроения эта серия отличается самой низкой себестоимостью, равной 95 руб.
Панельные дома находятся в разных районах Москвы, все в аварийном состоянии. По мнению экспертов, это худший строительный объект из всех хрущевских серий.
Характеристики панельного дома 1-335
Количество входов в дом от 3 и более. В домах нет лифта. В каждой квартире, за исключением 1 этажа, есть балкон.В конструкции не предусмотрен встроенный мусоропровод, аварийные балконы на лестнице отсутствуют. Кровля шатровая … Перекрытия выполнены из монолитных железобетонных плит. Межкомнатные и межкомнатные перегородки выполняются из гипсокартонных панелей. Несущие стены выполнены по конструктивной схеме, каркас неполный. Тип несущей стены — слоистая: снаружи железобетон, внутри пенобетон. Фасад облицован плиткой светлых тонов.
На этажах одно-, двух- и трехкомнатные квартиры … Квартиры малогабаритные. Площадь однокомнатной квартиры не более 31 м2, из них 19 м2 жилая. V двухкомнатная квартира общей площадью от 40 до 45м2 (около 35 — жилая). «Трешки» на 10-12м2 больше (около 55м2), при жилой площади 44-48м2.
Кухни имеют стандартную для любой квартиры площадь — 6,3 м2; потолки низкие — 2,5 метра. К квартирам добавляются кладовые.
К недостаткам панельной «пятиэтажки» можно отнести совмещение туалета и ванной комнаты. Наружные стены утеплены крайне плохо, поэтому в отопительный сезон в квартирах прохладно. Межкомнатные перегородки тонкие, что увеличивает слышимость от соседей.
Планировка 5-ти комнатной квартиры в кирпичном доме. Типовая серия жилых домов
С 1957 г., после принятия закона, предусматривавшего устранение излишеств в конструкции домов, в СССР начали возводить здания нового типа.В народе такие дома называли «хрущевками» (от имени Генерального секретаря ЦК КПСС Н.С.Хрущева). Второе название таким домам — хрущики, в основном из-за неудобной и непропорциональной планировки комнат, узких коридоров и пролетов площадок, тонких стен и, как следствие, жуткой шумоизоляции. В этой статье мы поговорим о том, какие типичные серии хрущевок, постараемся выделить основные плюсы и минусы этих построек.
Особенности макета предоставим в виде описания и фото.
Типовая хрущевка серии: основные плюсы и минусы домов
Давайте рассмотрим основные характеристики квартир и определим особенности каждой серии хрущевок, которые строились более 27 лет. Стоит отметить, что изначально хрущевку предполагалось использовать как временное жилье, а срок эксплуатации постройки составлял от 25 до 50 лет. Но, как известно, в этих домах живут люди в наше время.К недостаткам хрущевки можно отнести плохую шумо- и теплоизоляцию (зимой прохладно, а летом слишком жарко), не всегда удачная планировка квартиры и подъезда: узкие коридоры, небольшая кухня, отсутствие мусоропровод и очень часто лифт. К основным достоинствам таких домов можно отнести невысокую стоимость.
К основным достоинствам таких домов можно отнести невысокую стоимость жилья и развитую инфраструктуру вокруг дома. Как правило, рядом с хрущевкой есть детские сады, школы, магазины и отличная транспортная развязка.Если денег на покупку квартиры не хватает, то это неплохой вариант.
Более того, такие здания в Москве и других городах России подлежат сносу, и в этом случае собственники получают новое жилье или реконструкцию и перепланировку.
серии 1-464 (1960-1967)
Общий чертеж:
Одной из самых популярных серий хрущевок в СССР стала 1-464 (1960 — 1967). Это панельный дом в 5 этажей, редко можно встретить 3 и 4 этажные дома.Во всех квартирах есть балконы (также дополнительные кладовые), но нет лифта, и жильцам дома приходится подниматься и спускаться по лестнице, что довольно сложно для пожилых людей, семей с маленькими детьми. Санузлы в квартирах совмещены, у подъезда общего мусоропровода нет, а количество квартир на участке — 4. Высота потолков в квартирах 2,5 м2, кухни меньше 6 м2, если больше точный — 5,8 м2. Квартиры 1, 2 и 3 ком.
Изображение — чертеж:
1 комн .:
2-комнатная:
3-комнатная:
серии 1-335 (1963-1967)
С 1963 по 1967 г.
территория застроена домами серии 1-335. Это тоже панельные дома, с высотой потолков 2,54 м., Балконами в каждой квартире, санузлами совмещенными, без лифта и мусоропровода. Площадь кухни немного больше, чем в предыдущей серии — 6.2 м2, площадь потолков — 2,5 м. На участке четыре квартиры — от 1 до 3 комнат. Помимо балконов, в квартирах есть дополнительные кладовые и встроенные гардеробы.
1 комн .:
2-комнатная:
серии 1-434 (1958-1964)
Эта серия строилась с 1958 по 1964 год, в разные годы постройки планировки квартир были немного видоизменены. Так, например, в домах 1958 года в однокомнатных квартирах площадь гостиной составляла 18.6 м2, а в 1959 году она уменьшилась до 18,2 м2, в 1969 году — площадь помещения составляла 17,7 м2. Так вот во всех типах квартир площадь жилых помещений менялась в сторону уменьшения и увеличения. Но площадь кухни осталась неизменной — 5,8 м2, как и высота потолков — 2,5 м. В домах кирпич, санузлы совмещены, в каждой квартире есть балкон, кладовая, встроенные шкафы.
Картины — рисунок (по годам)
1-комнатная 1958
1-комнатная 1959
1-комнатная 1960
1-комнатная 1961
1-комнатная 1964
2-комнатная 1958
2 спальни 1959
2-комнатная 1960
2-комнатная 1964
Большинство домов в городах типовые кирпичные, с квартирами стандартной планировки.
Серия домов сталинского типа — строения из светлого кирпича или минерализованных панелей. Этот проект выделяется отличной планировкой, значительной высотой потолков. Для наружных работ часто использовались материалы с гранитной крошкой. Такие дома отличаются башнями «кремлевского» типа.
Строительство из стали было начато в 30-х годах 20 века. Подобные постройки созданы по индивидуальным проектам, но есть много типовых домов.Такие конструкции мало похожи на конструкции старого фундамента.
Хрущевка — панельная, кирпичная или блочная конструкция.
Инициатором создания таких построек был Н.С. Хрущев, они полностью лишены каких-либо изысков при проектировании и строительстве. Их строили до 1972 года включительно, а на некоторых участках — до 1980 года.
Отличительные характеристики таких построек:
- высота потолка — 2,5 — 2,6 м;
- очень маленьких кухонь, ванных комнат;
- преимущественно планировка 2 комнаты смежная.
После 2000 года начали сносить дома в 5 этажей. Хрущевки на 8 и 9 этажах сносу не подлежали. Первые постройки хрущевок — дома серии 1-335. Их возводили во многих городах СССР. Из-за отсутствия теплоизоляции такие постройки подлежат сносу.
Проекты серии 1-439, 1-439Я — 5-этажные дома блочного типа. Такой план построек строился в основном в северных регионах СССР.Хрущевки серии 1-447 — популярный тип построек. Подобные сооружения строились до 1970 года включительно. Высота комнат до 3 метров.
Здания панельного типа
Дома типа 1-464 — популярные постройки панельного плана времен СССР.
Их возводили в первый период хрущевки. Только с 1958 по 1964 год в строительстве таких сооружений участвовало более 200 домостроительных предприятий во всех регионах.
Кирпичные дома серии 1-466 являются типичными примерами жилых домов в 1,5 этажа.Высота комнат 3 м. Их строили исключительно в Москве (ее северная часть). Стены кирпичных домов из хрупкого виброкирпича. В итоге устанавливается до 6 панелей. Такие дома недолговечны.
В серии 1-467 находится первая панельная конструкция с шагом несущих стен. Впервые в дизайн таких построек внесена вариация планировки 1,2,3-комнатной квартиры. Дома в 1-5 этажей аналогичной планировки построены в пригородах и других частях страны.
Дома серии 1-510 — довольно распространенные блочные 5-этажные дома. Их особенность — толщина наружных стен, которая составляет до 40 см. Это прочные постройки, но некоторые из них сносятся при различных реконструкциях кварталов города.
Дома типа 1-511 — многосекционное строительство, кирпичная хрущевка в Москве.
В таких домах предусмотрены квартиры на 1-2-3 комнаты. Существует несколько модификаций построек, которые различают по высоте квартир, качеству строительных материалов, типу кровли.
Виды объектов МГ
Дома 1МГ-300 или МГ-300 — панельные дома в 5 этажей. Их особенность — наличие квадратных балконов, кубатура которых невелика. На каждом этаже такого дома по 3 квартиры. Строились они до 1968 года включительно.
Дома типа 1П-303-2 — 5-ти этажный панельный дом, второй по частоте дом в Москве и области. Отличительная черта 5-этажных домов — балконы покатые, в том числе торцевые.Дома типа 11-07 — одни из первых панельных пятиэтажных домов в Москве (ее юго-западная часть). Срок строительства 1958-1961 гг. Эти дома в аварийном состоянии, большинство из них уже снесено.
Корпус 11-07-19 — панельные дома с хрупкими наружными стенами из виброкирпича. Часто дома облицованы плиткой, каждый из них имеет по 4 узких окна на концах. Практически все сооружения этого формата находятся в аварийном состоянии, но сносят их только в западных районах Москвы.
Дома 11-17 — модификация серии 1-510. У них увеличенная площадь однокомнатной квартиры и большая площадь 3-х комнатной квартиры. Такие дома были построены в 60-х годах. прошлого века в Измайлово, Нагатино.
Мелкие объекты
Пример пятиэтажного хрущевского дома в Москве. Большинство из них — 8-, 9-этажные блочные постройки. В каждой квартире такого дома есть сидячая ванна; в двухкомнатных квартирах часто комнаты смежные.
Серия домов 11-18-01 / 09 МИК — 9-ти этажные кирпичные дома, аналог блочных конструкций 11-18-01 / 09.
Корпус 11-32 — типовой панельный дом из виброкирпича, внешние стены которого облицованы плиткой.
Характерной чертой таких построек являются балконы на столбах. Вариант этой серии — 11-32-130 — домики с малогабаритными квартирами (небольшие семьи). Они предназначены для небольших семей. Помещение в среднем 9-13 кв. м., а кухня имеет кубатура не более 3-3,5 кв. м
Корпуса 11-34 являются образцом 5-ти этажных кирпичных домов с небольшими семьями.
Подобные постройки возводились в столице в разных местах (1-2 дома в спальных районах). Это двухэтажные дома, которые соединены одноэтажной секцией, в центре которой находится комната — столовая.
Дома типа 11-35 — 5-ти этажные кирпичные дома с двухкомнатными и трехкомнатными квартирами. Их отличительная особенность — наличие довольно крупных внешних панелей. Такие дома часто строили в 1959-1962 годах. Сегодня все они снесены.
Объекты 11-38 и Брежневка
Конструкции 11-38 — первые панельные дома из объемных элементов.Помещения квартир собирали на заводах, а на стройках только монтировали. Это были опытные, опытные сооружения, они были возведены в 1959-1962 годах. в Люблине, Черемушки. Подобные сооружения есть и в Перми, Минске. Тип К-7 — хрущевка каркасная, панельного типа. Это массивные дома в Москве, 1958 года постройки. Их стены самые тонкие среди всех, потому что их снос — приоритетная задача.
На смену совершенно не оправдавшим себя хрущевкам пришла Брежневка.
Изначально это 8-, 9-этажные дома, которые затем превратились в 12- и 16-этажные дома. Это первые постройки с лифтами и мусоропроводами. Планировка квартир в таких домах стала более совершенной и современной. Улучшили шумо- и теплоизоляцию.
Планировка квартир в таких домах стала удобнее. Строительство таких домов началось в 70-х годах. прошлый век. Такие дома по праву можно назвать прототипами современных построек.После Брежневки начали строить дома по типовым проектам. Самыми распространенными сериями современных панельных домов являются КОПЭ, КОПЭ-М-ПАРУС, 155 и И-155м, П-3м, П-44м.
Донской инженерно-строительный техникум
Строительство и эксплуатация зданий и сооружений
Курсовой проект по дисциплине «Архитектура гражданских зданий»
На тему: «5-ти этажный жилой дом
Новочеркасск 2015
Запроектированный 5-этажный жилой дом прямоугольной формы в плане со стороной 34.20 х 12,00 м по типологическому признаку относится к секционному типу.
Жилая часть (блочная) — ячейка, состоящая из нескольких квартир, расположенных вокруг одного узла связи (подъезд, тамбур, лестничная клетка). Планировка площади каждой квартиры выполнена в соответствии с функциональной схемой взаимоотношений помещений.
В проектируемом доме тип лестницы — поперечный.
По эксплуатационным требованиям проектируемый жилой дом относится ко II степени прочности.
Согласно СНиП 2.01.07-85 * «Нагрузки и удары» проектируемый жилой дом относится ко 2-му уровню ответственности.
Согласно СНиП 2.01.02-85 * «Нормы пожарной безопасности» проектируемое жилое здание относится ко второй степени огнестойкости, так как несущие и ограждающие конструкции выполнены из искусственных каменных материалов: кирпичные стены, железобетонные перекрытия и лестничные клетки. .
Решением городского управления экономики Новочеркасска дано разрешение на строительство 5-ти этажного жилого дома в городе Новочеркасске.Форма участка прямоугольная, площадью 3000,00 м².
На участке расположены: 5-ти этажный жилой дом, беседка, паркинг, детская площадка.
Здание ориентировано по широте, что позволяет экономить тепло зимой. Удаленность от ближайшего дома — 24,70 м, что соответствует противопожарным и санитарным требованиям.
Вертикальная планировка участка предусматривает отвод дождевой и талой воды.
На участке проложена автомобильная дорога шириной 4,00 м и пешеходные дорожки с асфальтовым покрытием.Вокруг здания отмостка шириной 1,00 м. Также на участке есть зеленые зоны: кусты обыкновенных насаждений и лиственные деревья.
Объемно-планировочное решение — решение, на основании которого принимается тот или иной состав и размер помещения.
Здание прямоугольной формы; 5 этажей и подвал.
Данный объект запроектирован:
высота каждого этажа 2,80 м;
Высота всего здания 15,60 м;
размеры по осям 34.20 м (1-9) и 12,00 м (A-D).
Жилой дом состоит из 20 квартир: 10 двухкомнатных и 10 трехкомнатных.
Двухкомнатная квартира включает в себя: коридор, гостиную, спальню, кухню, санузел, кладовую, лоджию, балкон.
Трехкомнатная квартира включает в себя: коридор, гостиную, спальню, детскую, кухню, санузел, лоджию, балкон.
Состав: Два листа и ПЗ (Фасад 1-6 М1: 100; Разрез 1-1 М1: 100; План 1 этажа М1: 100; План типового этажа М1: 100; Генеральный план М1: 500; Узел 1 М1: 20; Узел 2 М2: 10; План фундаментов М1: 100; План перекрытия и перекрытия М1: 100; План крыши М1: 100; Узел 3,4,5 М1: 10; узел 6 М1: 20л)
Софт: КОМПАС-3D 13 СП2
Проект 5-ти этажного жилого дома.dwg
Разделы АР, КЖ, ЭО, ВК, ОВ
Строительные решения и конструкции
Дом 5-ти этажный, монолитно-монолитный, железобетонный. Высота этажа 3,0 метра.
После разработки котлована провести анализ почвы. (В случае обнаружения других грунтовых оснований сообщить разработчикам проекта).
Фундаменты предназначены для основных грунтов — твердых суглинков со следующими расчетными характеристиками: y = 19 кН / м3, U = 19 градусов.c = 25 кПа. (инвентарный материал »отчет по инженерно-геологическим изысканиям на объекте:« Цех на ул.
Перова ». Арка. ДСП № 930). Суглинки первого типа
Фундаменты и монолитные стены технического подполья выполнять на сульфатостойкий цемент.
Фундаменты под колонны — монолитные железобетонные столбчатые, под стенами технического подполья и диафрагмы жесткости ленточные.
Стены технического подполья — монолитные железобетонные толщиной 300 мм.с теплоизоляцией толщиной плиты 100 мм.
Колонны — монолитные железобетонные сечением 400х400 мм.
Диафрагмы жесткости монолитные железобетонные толщиной 200 мм.
Перекрытия и покрытия монолитные, железобетонные, толщиной 220 мм. Отмостка бетонная.
Покрыть все неуказанные поверхности конструкций смачивающим битумом, контактирующим с почвой, 2 раза, используя грунтовку из жидкого битума.
Бетонирование при отрицательной температуре окружающей среды и температуре выше + 25 градусов. должны соответствовать требованиям СНиП РК 5.03-37-2005 «Несущие и ограждающие конструкции».
При производстве всех видов работ действует СНиП РК 1.
03-05-2001 «Охрана труда и безопасность строительства.
Окрашивать металлоконструкции эмалью ПФ-115 ГОСТ 6465-76 в 2-х слойной грунтовке ГФ-021 ГОСТ 25129. -82 в 1 слой по СНиП РК 2.01-19-2004.
Огнезащита металлоконструкций осуществляется вспучивающимся покрытием ВПМ-2 (ГОСТ 25131-82) при расходе 6 кг / м2 и с покрытием толщина 4 мм после расширения
Водоснабжение и канализация
В проекте приняты следующие технические решения:
Прокладка распределительных сетей холодного и горячего водоснабжения в техническом подполье.
— Выдача бытовой канализации на колодец общей сети.
— у входа в дом установлен водомер в сборе со счетчиком холодной воды
— горячее водоснабжение — центральное (см. Раздел «ОВ»)
Отопление и вентиляция
Проект отопления и вентиляции жилого дома разработан по чертежам АЭС, согласно требованиям СНиП РК 4.02-05-2001, СНиП РК 3.02.01-2001.
Расчетная температура наружного воздуха для отопления принимается Тн = -31 С.
Источником тепла дома является ТЭЦ.
Продолжительность отопительного периода 200 дней.
Суммарный расчетный отпуск тепла 580000 ккал / час.
Параметры теплоносителя 130 — 95 С.
Подача горячей воды — от теплового агрегата.
Система отопления жилого дома представляет собой однотрубную тупиковую систему с П-образными стояками с разводкой подающих и обратных труб по техническому подполью.
Чугунные радиаторы M90-108 приняты как нагревательные устройства.
Вентиляция жилого дома предусмотрена — вытяжная, естественная, через вентиляционные каналы кухонь и ванных комнат. Вентиляционные каналы представляют собой коробчатое сечение. 200х200 из плоского асбоцементного листа.
Трубы принимаются стальные водогазопроводные по ГОСТ 3262-75 **
Монтаж систем отопления и вентиляции должен производиться по СНиП 3.05.01-85.
Электроснабжение и освещение
В качестве вводно-распределительного устройства принят щит типа ВРУ, который устанавливается в техническом подполье дома.
Для электроснабжения квартир от распределительного щита отходят питающие линии, подходящие для шкафов SchE 3300.
Электрошкафы ЩЭ устанавливаются в подъездах этажа. В шкафах есть счетчики квартирного учета электроэнергии, автоматы защиты групповых линий квартир и распределительные коробки для слаботочных устройств.
В щитках осветительных напольных ЩЭ двери шкафа укрепить запорным устройством, обеспечивающим доступ к ним только персоналу энергоснабжающей организации.Учет электроэнергии на освещение подвала и лестничных клеток ведется счетчиком, установленным на щитке ВРУ.
Линии группового освещения выполняются проводом ПУНП, проложенным в трубе, скрытой по потолку, в стенах стен.
Сядьте и напишите две буквы. Развлекательная вещь, чтобы запечатлеть вашу… | Дэвид Купер
Занимательная вещь, чтобы заинтересовать вас
Когда Никита Хрущев был изгнан с поста лидера Советского Союза, он сел и написал два письма своему преемнику Леониду Брежневу.
Он сказал: «Когда вы попадаете в ситуацию, из которой не можете выбраться, откройте первое письмо, и вы будете в безопасности. Когда попадаешь в другую ситуацию, из которой не можешь выйти, открой второе письмо ». Брежнев вскоре оказался в затруднительном положении, поэтому открыл первое письмо. В нем говорилось: «Во всем виноват я». Поэтому он обвинил во всем Хрущева, и это сработало. В конце концов, он попал во вторую сложную ситуацию, из которой не мог выбраться, поэтому открыл второе письмо. Там сказано: «Сядь и напиши две буквы».
Product Wisdom
Я заметил, что продукты / функции, которые мы запускаем, всегда занимают больше времени, чем мы ожидаем. Соблюдение крайнего срока обычно означает, что мы должны сократить определенные функции. Даже если вы не занимаетесь менеджментом продуктов, я уверен, что вы сталкивались с этим явлением. На самом деле, проекты, выходящие за рамки графика, — это настолько обычное явление, что для этого есть закон.
Закон Хофштадтера: проекты всегда занимают больше времени, чем вы ожидаете, даже если принять во внимание закон Хофштадтера.
![]()
Предотвращение выхода проектов за рамки графика, вероятно, неизбежно. Так что заранее выясните, готовы ли вы отодвинуть крайний срок или урезать функциональность.
В новостях
Еще в январе Apple анонсировала Health Records, функцию, которая позволит людям безопасно получать доступ к своим медицинским картам со своего iPhone. Теперь неудивительно, что пациенты не имеют доступа к своим записям и не контролируют их. Это связано с тем, что поставщики электронных медицинских карт (EHR) отказываются интегрироваться друг с другом.
Из объявления Apple:
В прошлом медицинские карты пациентов хранились в нескольких местах, поэтому пациенты должны были входить на веб-сайт каждого поставщика медицинских услуг и вручную собирать информацию. Apple работала с медицинским сообществом, чтобы использовать подход, ориентированный на потребителя, создав медицинские записи на основе FHIR (Fast Healthcare Interoperability Resources), стандарта для передачи электронных медицинских записей.
![]()
Что такое FHIR? Это в значительной степени медицинская версия, если говорить о распространенном формате API.И, на мой взгляд, это не так. Еще в 2012 году политическое давление на поставщиков электронных медицинских карт вынудило их выйти из своей изолированности и сделать вид, что они поддерживают FHIR. Но политическое давление рассеялось, и крупные поставщики электронных медицинских записей просто не заботятся о FHIR. Например, в публикации на Medium Эдварда Букстела он указал на минимальный вклад (397 коммитов), который Cerner, один из крупнейших поставщиков электронных записей, внес в репозиторий FHIR на Github с открытым исходным кодом.
Замечательно, что Apple создает поддержку медицинских карт, но не решает проблем интеграции, с которыми сталкиваются поставщики электронных медицинских записей.Я думаю, что в конечном итоге FHIR потерпит неудачу, и пациенты будут продолжать страдать. Может быть, блокчейн нас спасет.
Этот роман, действие которого происходит в «Коммунистической России», прекрасно иллюстрирует, почему вы должны переосмыслить настройку конференц-зала
Как эксперт по собраниям, я получаю много вопросов о том, как изменить людей, которые плохо себя ведут на собраниях.
Сотрудники хотят знать, как повлиять на лидеров, которые используют собрания для проведения судебных заседаний. Члены команды, которые молча прячутся в задней части комнаты или сидят в дальнем конце стола и проверяют свою электронную почту.Человек, который говорит снова и снова, по-видимому, не обращая внимания на других, ожидающих своей очереди выступить.
Все эти вопросы касаются того, как вести себя с трудными людьми — как исправить их поведение. Я согласен со знаменитым изобретателем 20-го века Р. Бакминстером Фуллером, который однажды сказал:
«Вы никогда ничего не измените, борясь с существующей реальностью. Чтобы что-то изменить, создайте новую модель, которая сделает существующую модель устаревшей».
Вы не можете исправить людей, но вы можете смоделировать среду, чтобы поощрять иное поведение.Например, физическая планировка вашего конференц-зала может иметь большое влияние на поведение группы.
Помещения для встреч, укрепляющие иерархию власти
«Джентльмен в Москве» разворачивается на заре Советского Союза.
Рассказ о том, что произошло после смерти Сталина, прекрасно иллюстрирует, как форма переговорной может повлиять на результат встречи.
Сталин не назвал преемника, оставив нескольких соперников, борющихся за то, чтобы стать новым лидером. Согласно книге, ведущие сильные игроки были приглашены на обед.Прибыв на место, они обнаружили большой U-образный стол без именных бирок и инструкций. Каждый должен был разобраться и выбрать место за столом, чтобы сесть.
Некоторые предпочли сесть за ножки U, а некоторые за стол, который составлял основу U — так сказать, за стол. Никто не претендовал на место в абсолютном центре U, оставляя традиционное место власти вакантным.
Хрущев опоздал. Он вошел, обошел стол, обменялся любезностями и пожал руку.Затем, небрежно и с естественным авторитетом, Хрущев занял центральное место.
Вскоре после этого Хрущев был назначен новым лидером Советского Союза.
П-образная форма — это эффективный способ усадить большое количество людей, которые будут смотреть либо на ведущего, расположенного в открытой части буквы U, либо на ведущего, сидящего в центре вверху.
Это также ограничивает видимость и взаимодействие для всех остальных.
Когда вы смотрите фильмы, изображающие встречи между политиками или советами директоров, вы снова и снова видите прямоугольные формы, потому что это визуальный ярлык, который передает часть истории о власти и превосходстве. Игра престолов Поклонники знают, что Малый совет в Королевской Гавани сидит за прямоугольным столом, а во главе его стоит самый доминирующий член.
Помещения для встреч, уравновешивающие динамику сил
Круглые столы, с другой стороны, уравновешивают динамику сил. Они позволяют каждому за столом одинаково выслушивать или обращаться к кому-либо еще. Когда идеи делятся в письменной форме, они могут быть буквально помещены в общий центр группы, становясь совместной работой «нас».Круг — это форма собрания у костра, коллективных намерений и единства. Звездные войны Поклонники могут заметить, что совет джедаев собирается по кругу.
Команды, которые встречаются стоя, естественным образом образуют круг или форму подковы вокруг своей общей доски объявлений.
Как неправильная форма может помешать встрече
Недавно я провел семинар и попросил комнату с несколькими круглыми столами. Представьте себе мой ужас, когда я прибыл и обнаружил большую U-образную установку, полную белого белья и бокалов для питья.
Я должен был переставить комнату прямо тогда, но я чувствовал себя плохо из-за отмены настроек прекрасного места и не стал. Это была ошибка.
В тот день я много импровизировал, пытаясь заставить все работать. Несмотря на все мои усилия, время у нас тянулось, и взаимодействие было не таким динамичным, как хотелось бы. Группа продолжала смотреть на меня, как будто я был приглашенным лектором, чтобы развлечь их, а не фасилитатором, направляющим их к совместной работе. Просто невозможно было создать такую же близость в небольшой группе или погрузиться в материал так глубоко, как нам нужно, когда всем приходилось неловко поворачиваться, чтобы услышать друг друга.
Какая бы у вас ни была конфигурация комнаты, вы можете заставить ее работать, но если планировка комнаты говорит об иерархии, когда вы хотите групповое владение, вы будете постоянно бороться с укоренившимся поведением.
Когда у вас есть выбор, работайте над настройкой комнаты, чтобы создать необходимую вам динамику мощности и взаимодействия.
Не пытайтесь изменить людей. Измените окружающую среду.
Мнения, выраженные здесь обозревателями Inc.com, являются их собственными, а не мнениями Inc.com.
ПЛАНИРОВКА ДВУХКОМНАТНЫХ КВАРТИР «ХРУЩЕВ» (55 ФОТО): ЛУЧШИЕ ВАРИАНТЫ ПЛАНИРОВКИ НОМЕРОВ В ТИПОВЫХ «ХРУЩЕВАХ», ДИЗАЙН ДВУХКОМНАТНЫХ КВАРТИР МАЛОЙ ПЛОЩАДКИ
Поделиться
Штифт
Твитнуть
Отправить
Поделиться
Отправить
Массовое жилищное строительство советских времен оставило нам в наследство маленькие квартиры, разделенные на маленькие комнаты для членов большой семьи, с маленькой кухней, коридором и миниатюрной ванной комнатой.Многие продолжают жить в таких квартирах, ругая неудобную планировку, а некоторые решаются модернизировать свое жилое пространство и приближать его к современным требованиям.
Большинство стандартных европейских квартир имеют небольшие размеры, но при этом имеют функциональную планировку и стильный дизайн.
Япония превзошла все другие страны в архитектурном плане, мастерски разместив все необходимое для жизни семьи на минимальной площади. А в Гонконге из-за дороговизны жилья площадь квартиры сведена к минимуму, а каждый сантиметр наделен утилитарными функциями.Попробуем разобраться, сколько всего можно воплотить в наших «хрущевках».
Плюсы и минусы
В России распространены два вида конструкционных материалов для пятиэтажных домов: кирпичные и панельные дома. Сразу отметим, жителям кирпичных домов повезло больше, такие стены лучше поддаются модернизации, кирпичную кладку легко аккуратно разобрать, а высвободившиеся кирпичи можно использовать для внутренних ремонтных работ или возведения стены в другом месте.
Жителям панельных квартир для коренной перепланировки или даже сноса одной стены может потребоваться привлечение специальной техники для разрушения ненужных перегородок. Однако для межкомнатных перегородок в таких домах часто использовался такой материал, как гипс.
Гипсовую стену легко отпилить до нужных размеров обычной ножовкой, и вы можете быть на 100% уверены, что эта стена не несущая.
Именно особенность дизайна квартир является основным условием модернизации помещений.
В двухкомнатных квартирах принято избавляться от части стен, чтобы объединить две или три комнаты, а одну комнату оставить изолированной.
Задумав перепланировку, необходимо в архитектурном отделе вашего района приобрести поэтажный план вашего дома, где указаны все несущие и ненесущие конструкции. Если вы сами не обладаете знаниями в этом вопросе, то вам нужно проконсультироваться со специалистами.В противном случае ваш ремонт может поставить под угрозу безопасность здания в целом.
Во избежание этого соблюдаем обязательные правила:
- Несущие конструкции нельзя ослаблять: делать их тоньше, вырезать в них проемы, устраивать арки без усиления швеллерами.
- Канализационные стоки следует располагать только в ванной, санузле и кухне, на месте общего стояка дома.
Газовую трубу категорически нельзя передвигать самостоятельно.
- Изменение размеров и количества оконных проемов недопустимо, здесь нужны специальные разрешения, так как при этом меняется внешний фасад всего многоэтажного дома.Исключение составляют оконные проемы, выходящие на балкон, здесь получить разрешение немного проще.
- Все предлагаемые изменения вносятся в чертеж и согласовываются с районным архитектором, электриками и газовой службой. Это занимает много времени, требует затрат на регистрацию, но без согласований перепланировку начать нельзя.
Типовые проекты
Итак, у нас есть поэтажный план дома, и на нем мы нашли нашу квартиру.Мы изучим возможности модернизации. Наша двухкомнатная «хрущевка» имеет метраж от 30 («фура») до 43 квадратных метров. м. Общая площадь. Комнаты обычно смежные. Санузел совмещен в одну комнату. Коридор не более 3 кв.м, есть дверь на кухню, большую комнату и санузел.
Имеется балкон или лоджия, если это не первый этаж.
Смежные комнаты расположены по типу «трамвай»: дверь ведет из холла в узкое и длинное помещение.Здесь удобно расширить коридор за счет большой комнаты, узкую комнату оставить без изменений, а в конце коридора разместить шкаф. Таким образом, мы получаем две небольшие изолированные комнаты для взрослых членов семьи и детей.
Для одиноких хозяев можно предложить вариант совмещения кухни и холла.
Планировка второго типа: комнаты расположены друг за другом, холл — проходная, между кухней и холлом коридор заменен нишей.Уже есть совмещение функциональных зон, и, однозначно, стена между кухней и прилегающей комнатой, в которой расположена ниша, не несущая. Здесь можно применить следующие приемы реконструкции: снести часть стены между кухней и залом, объединяющую эти две зоны, и оставить перегородку, разделяющую входную дверь.
Так пространство квартиры будет более уютным и уютным.
Более радикальный способ — сносится вся стена между кухней, холлом, коридором, сантехнический блок остается целым.Современный минимализм в дизайне помещений делает ставку именно на такие полностью открытые пространства и, наконец, обратное решение для изоляции комнаты. Ниша достраивается до полноценной стены, делается обычный дверной проем и получается изолированный коридор, кухня, холл. Этот вариант предпочтителен для семей с детьми, где вам нужно удовлетворить потребности нескольких домохозяйств с разными режимами сна и бодрствования.
Третий тип — угловая квартира 2х комнатная планировка , особенность угловых квартир в том, что одна из комнат имеет два окна.Это, с одной стороны, затрудняет расстановку мебели, а с другой — расширяет возможности стильного оформления пространства. Если нет препятствий со стороны несущих конструкций, то из этого помещения можно сделать две небольшие спальни или спальню и кабинет, спальню и детскую.
И объединить холл в единое пространство с кухней и прихожей, где может собраться вся семья.
Сегодня в дизайне квартир модной тенденцией является наличие единого пространства без капитальных стен, но с функциональным зонированием с помощью мебели, трансформирующихся систем и отделочных материалов.
Интересные дизайнерские идеи
Размеры хрущевской «двушки», конечно, не позволят создать роскошный интерьер в стиле ампир, но в маленькой квартире этого не требуется. Лучше сделать акцент на современные стили минимализма — скандинавский, хай-тек, средиземноморский. В этих интерьерах максимальная вместительность сочетается с простой утилитарной мебелью удобных лаконичных форм, которая освободит пространство.
При выборе варианта модернизации следует учитывать потребности домочадцев, будет ли им комфортно спать и отдыхать в одной большой комнате, и учить уроки, и принимать гостей.Возможно, лучше оставить изолированные комнаты.
Если выбран способ комбинирования, то в декоре есть определенные приемы, которые нужно знать.
Раздвижные двери очень популярны для пространственного зонирования «жилеток». При необходимости они могут изолировать зону спальни или кухни. Дизайн дверей в одном помещении должен быть выполнен в едином стиле, вплоть до входной двери. если он также входит в общее пространство. Лучше, если они будут одного цвета со стенами, ведь несколько дверей в одной комнате могут разделить общую панораму интерьера.
Шкафы лучше устанавливать во всю стену с раздвижными дверцами, это сэкономит место. Предпочтительно выбирать светлую отделку или под цвет обоев, это позволит зрительно увеличить комнату, дизайн дверей и фасадов корпусной мебели должен гармонировать между собой, для элементов конструкции следует использовать темный цвет. , хорошо организует пространство.
Для стен и потолка лучше выбирать белые, бежевые или насыщенные оливковые, розовые, голубые тона.
Крупный узор на обоях или потолке лучше использовать в подчеркнутых местах, чтобы обозначить определенную зону, например, над обеденным столом. Необязательно оклеивать все стены обоями с крупным орнаментом. Это зрительно уменьшит масштаб помещения.
Глянцевые поверхности мебели или потолка зрительно расширят пространство. Многоуровневый потолок, в котором сочетаются глянцевые и матовые поверхности на разных уровнях, также является одним из способов отделения одной зоны от другой.
Арки и стойки традиционно используются для разграничения комнаты. Красиво и стильно оформленный стеллаж не только отделит рабочую зону от гостиной, но и станет художественным акцентом помещения.
В отделке пола используются разные материалы для обозначения определенной зоны, например, сочетаются плитка и паркет, камень и плитка. Также делают двухуровневый пол, чтобы отделить спальню от гостиной или кухню от холла.
Для малогабаритных квартир дизайнеры создали широкий выбор мебели-трансформер.
Кровать с дополнительным выдвижным спальным местом экономит место.
Если вам достаточно небольшого столика на кухне, можно приобрести конструкцию с раскладным раскладным столиком для приема гостей.
Варианты ремонта
Самый распространенный вариант перепланировки — объединение кухни и холла. Маленькая кухня позволяет разместить компактный кухонный гарнитур и барную стойку, которая отделит гостиную от зоны готовки.Барная стойка оборудована несколькими посадочными местами для приема пищи. Двухуровневый потолок визуально разделяет зоны. Акцентная стена с крупным рисунком указывает на размещение гостиной.
Когда снесли стену между кухней и прилегающей комнатой, появляется возможность интересно оформить два окна и стену между ними. Использование различной декоративной отделки придает глубину и зрительно увеличивает площадь. При этом нужно следить за тем, чтобы палитра отделочных материалов была взаимно гармоничной по цвету и фактуре.
Свободная планировка квартиры еще требует создания интимных зон. Такой зоной является спальня, для придания ей уединения проектируют ниши, арки или устанавливают полки. При этом для зонирования используется цвет и разная отделка потолка. Зона гостиной оформлена в одном цвете, а зона спальни — компаньонного цвета и отделена контрастным стеллажом.
Еще одним удачным приемом модернизации метража небольшого помещения является использование балкона как одного из внутренних помещений.
Современные отделочные материалы относительно недороги, чтобы включить балкон на площади комнаты или кухни. Для этого проводятся работы по утеплению периметра балкона. Установлены батареи отопления, сделан теплый пол, в нише балкона размещен кабинет.
Создание небольшой обеденной зоны на балконе добавит пространства небольшой гостиной или кухне.
Выбор штор в таких трансформирующихся помещениях становится очень важным. Цвета текстиля должны соответствовать обивке мягкой мебели и цвету обоев, чтобы комната не распадалась на отдельные сегменты.
Стоит обратить внимание на то, чтобы цвет мебели гармонировал с орнаментом на шторах.
Таким образом, даже устаревшую хрущевку можно превратить в комфортабельные современные квартиры.
Как сделать правильную перепланировку 2-х комнатной «хрущевки», смотрите в следующем видео.
Поделиться
Штифт
Твитнуть
Отправить
Поделиться
Отправить
кубинский генератор имен Вы можете использовать любое из имен, которые предоставляет этот генератор испанских имен.В некоторых частях страны постоянно натирают 1. Список детских имен — 170 популярных кубинских детских имен — ознакомьтесь с этим списком популярных имен, которые обычно используются на Кубе. Генератор мексиканских имен Создавайте имена и отчества мексиканского происхождения. Я могу достать проигрыватель и генератор. Создавайте музыку, которая заставляет вас чувствовать себя лучше. Я не живу в бедности, у меня есть немного денег.
Вариант Эрнеста: Серьезно. Маленькое классическое именное колье из стерлингового серебра. Кубинский кодекс «Код» подразумевает уровень престижа или статуса, необходимый для входа.Авторы этих работ определили, что имена принадлежат сефардам. Вот некоторые примеры имени учетной записи: -undefined Шаг 2: Создание бизнес-названий бара. С Альфредо Арментеросом, Дэнни Пино, Ричардом Маркесом, Франклином Домингесом. com @cutekids Источник: Getty Images. Просматривайте значения имен, рейтинги, комментарии других людей, рейтинги и другую статистику в дополнение к значениям имен. Вы можете носить именное ожерелье, чтобы показать своим близким, насколько они для вас особенные. Долгое время было популярным шотландским именем, потому что St.Телефонный номер состоит из телефонного кода страны, кода города и еще нескольких номеров, которые помогают предоставить точный адрес для соединения телефонного звонка с определенной телефонной линией. Поскольку конкуренция на рынке стремительно растет, вы не можете получить больше Кубинские вооруженные силы называют Революционными вооруженными силами Кубы (РВС).
Известные кубинские детские имена с английскими значениями »Список популярных кубинских имен для девочек и мальчиков. Генератор названий городов и населенных пунктов. Вот 50 красивых карибских имен для мальчиков и девочек, которые помогут вам! Читайте: Лучшие названия охранных компаний и Лучшие названия форекс-компаний.Получите свое собственное китайское имя на основе своего английского имени и узнайте свой знак в китайском зодиаке! Просто введите свое имя и фамилию, выберите, какие характеристики вы хотите выразить в имени, выберите свой пол, введите дату своего рождения и нажмите «Получить имя!». Большинство имен, созданных с помощью генераторов, полностью уникальны, и вы можете использовать их в своих собственных материалах. Глупый ник. Вы также можете увидеть самые популярные кубинские имена для мальчиков. Фэнтези Названия Команд Футбол Бейсбол Баскетбол Гонки Гольф Футбол Хоккей Смешные Названия Команд Групповой чат Для Девочек Для Работы Ходьба Фитнес Девушки Софтбол Бег Танцы.Ушел коммандос.
или «и другие» 1. Английское имя охватывает широкий спектр культурных имен, но этот генератор ориентирован в первую очередь на британские тенденции в области именования. Привлекательные названия игровых магазинов. Игрушки Монджо. После этого нужно выбрать количество победителей и нажать кнопку СТАРТ. Наша цель — быть вашим универсальным магазином для поиска фамилий любого происхождения. Например: все они относятся к конкретной стране, однако есть также много конкретных имен в зависимости от принадлежащих провинций, для которых не требуется конкретная страна (например, «Куба», требующая всей Кубы — но я предполагаю, что вы можете тоже нет испаньолы, иначе Куба не сформируется).Это не поддельные результаты — это все настоящие почтовые индексы. Проверьте исходный код бота. Ямпье. Nameboy — это оригинальный генератор доменных имен, созданный в 1999 году. Хотя возможность дать название конференц-залу не обойдется вам в 20 миллионов долларов, это все равно важно. MyBib автоматически создает точные цитаты Генератор.
Выберите генератор в зависимости от пола, а все остальное сделает машина. Мы также гордимся нашими бесплатными инструментами, включая генератор мемов домашних животных и генератор имен домашних животных. Первый генератор U.Несмотря на то, что любовь к классическим названиям остается прежней, мы чувствуем, что они кажутся скучными с изменением времени. Бесплатный генератор заголовков эссе. На испанском языке говорят сотни миллионов человек по всему миру, многие из которых живут в Южной Америке. У вас есть возможность выбрать любой год ниже, введя год, используя четыре цифры. Эти номера телефонов соответствуют правильному формату номеров, и вы также можете указать страну и количество для создания. Генератор американских имен. Страница 1 из 8. Просто отправьте форму выше, чтобы создать отличный сценический псевдоним в стиле рэп на основе вашего настоящего имени.Освещает камеру, действуя. Логотип Metallica. Losa Spanish. Идти. Дэвид Вудс, 1 декабря 2021 года. Имя Куба — это в первую очередь мужское имя испанского происхождения, что означает «С Кубы».
Почтовые индексы Все права U. на имя Montecristo, взятые на имя Faber, Coe и Gregg, крупнейших импортеров кубинских сигар в США, в Menendez vs.. Имя Daniel произошло от этимологии иврита. Почтовый индекс 9560. Мужской Женский: Имя: Фамилия:… Псевдонимы, классные шрифты, символы и теги для Кубы — Cubana, CubaBby, Cubaboy, ²º ㅤ Cυbα メ, CUB, Cubas.«ABRAMO: итальянская форма латинского Abrahamus, что означает« отец множества ». Конечно, они могли разделять это имя, но я хотел, чтобы у каждого была своя ручка, потому что это казалось проще. Инструменты разработаны, чтобы быть крутыми и развлекательными, но они также помогают начинающим писателям создавать различные материалы, включая сюжеты, тексты песен, стихи, буквы и имена. Запата. Мы уже упоминали об этом выше, генератор имен собак — очень удобный инструмент, который поможет вам отсортировать имена, которые вы предпочитаете. 10. American Name Generator предоставляет как американские мужские имена, так и американские женские имена, включая личную информацию, такую как адрес, номер кредитной карты, номер телефона, адрес электронной почты и хобби.
У человека, например, может быть две фамилии, одна… Найдите свой любимый дизайн, материал и стиль ювелирных изделий из нашей коллекции изготовленных на заказ колье с золотыми именами, и мы добавим в них желаемое имя или специальное сообщение. Поделиться через фейсбук. Его Преосвященство Франклин Перепел работный дом. com позволяет создать календарь на любой год. Даже адресные улицы генерируются случайным образом, это не соответствует реальным адресам. Кубинские сигариллы: более классное название сигары, «сигарилло» пробуждает все ощущения от пребывания в элитном сигарном баре.Генератор поддельных данных — полезный инструмент для создания данных для вариантов использования, на этом веб-сайте вы можете генерировать миллионы случайных данных для своих различных проектов, вы можете генерировать кредитные карты, удостоверения личности, имена, пароли, дебетовую карту, подтверждать кредит и дебет карты, чек или банк BIN, генерация Фибоначчи, ISBN для поддельных книг и многое другое! все бесплатно! Генератор имен танков.
Есть целый выпадающий список, из которого вы можете выбрать организацию по вашему выбору. Лучшее в создании нашего имени … Женщина, заключенная в тюрьму за отравление пасынка, была помещена в одиночную камеру после того, как испытала серьезную карму, когда ее сокамерники отравили ее в отместку за ее преступления.Обращайтесь: devon8908 # (gmail. ‘. Имея это в виду, вот еще несколько названий компаний, которые я придумал: Animal Bar. Просто введите URL-адрес своей фотографии в Instagram, и мы найдем для вас все комментарии. Укажите тип вашего ресторана ( Мексиканская кухня) плюс «ключевые слова». Clara f Немецкий, испанский, португальский, итальянский, французский, каталонский, румынский, английский, шведский, датский, позднеримский. Женская форма позднего латинского имени Clarus, что означало «ясный, яркий, знаменитый» .Детские имена. ZIP означает план улучшения зоны. PoKeMoN Go Generation 2 Генератор имен Генератор идей игры Генератор идей карты Генератор идей гильдии Генератор имени гильдии Сгенерируйте имя для своей гильдии.
Какой бы огромной, интересной и порой сбивающей с толку ни была культура, практика, когда ребенку дают две фамилии, происходит из-за ее арабского влияния. 14 »Кристал Мария София ла Каролина Майте Лола Алекса Мартинес (во вторник, 30 августа 2016 г.) сказала: Loool. Узнайте, почему идеальное имя собаки должно соответствовать 8 важным условиям. Еще одна вещь, которую следует учитывать при выборе названия для торговой компании, — это место, где она будет расположена. Генератор поддельных адресов предоставляет поддельные адреса по всему миру, включая личность, номер телефона, кредитную карту, номер социального страхования (SSN) и улицу, род занятий и что-то еще.Лесли Мейсон (нейтральный) Free Fire Никнейм ️ Генератор имен 1 Стиль. Создайте стартовое приложение React, выполнив следующую команду: gen-cuba-front response-typescript: app. Вы можете бесплатно попробовать создатель случайных логотипов! 1. Продолжайте нажимать, пока не найдете фамилию, которая вам нравится. С помощью инструмента «Генератор детских имен» от NameGenerator-Engine вы можете легко генерировать имена для мальчиков и девочек и теперь выбрать свое любимое имя.
MicDrop. Вместо этого лучше подойдет плохое, но милое имя. Известная как латинская версия греческого имени Селена, Селена — чрезвычайно экзотический выбор, романтичный и милый.Он может помочь вам создать логин для учетной записи на веб-сайте или псевдоним для Cuban с помощью нескольких щелчков мыши. Золотые цепочки с именами Gold Presidents идеально подходят мужчинам и женщинам всех возрастов. Любые имена, которые есть на этом сайте, — это просто изобретение и результат специальных алгоритмов. Амато Бембе. Макс из Русалочки — собака принца Эрика; он наслаждается жизнью в океане на борту корабля Эрика. Мы надеемся, что вам понравится использовать наши многочисленные генераторы фамилий, чтобы найти отличную фамилию. Дедхед кубинец Литтл Страшный.Например, названиями могут быть: Blowout Bar, Brew Blast, Brandy’s Bar, Beer & Beats. Ежемесячные инвестиции в размере 100 долларов, приносящие доход в размере 6%, вырастут почти до 45000 долларов через 20 лет. Фамилии отлично подходят для поиска имен персонажей в рассказах или других художественных произведениях.
Уменьшительное от Andrew: Manly. Предыдущий. Генератор имени пользователя Twitter; Игра престолов. # Имя Фамилия Полное имя; 1: Захари: Смит: Генераторы имен могут генерировать фамилии из разных мест и эпох. Создайте свой собственный.Вместе с такими сервисами, как генератор имен и генератор социальных номеров, вы можете скрыть свою личность в Интернете. My Pet’s Name посвящен поиску идеального имени для вашего питомца — собак, кошек, лошадей, цыплят, ящериц и т. Д., У нас есть. Мы также гордимся нашими бесплатными инструментами, включая генератор мемов домашних животных и генератор имен домашних животных. Здесь родился святой Игнатий Лойола (1491–1556), основатель иезуитов. В этой статье мы собрали самые привлекательные и модные названия ресторанов для вашего нового стартапа.Ниже вы найдете наш широкий выбор имен кубинских мальчиков и генератор имен кубинских… бродяг. Куба, страна с населением 11 миллионов человек, с несколькими тысячами красивых островов, делает Карибский регион превосходным и богатым сокровищами экзотических известных кубинских имен мальчиков и девочек.
«АХИЛЛ»: французская и итальянская форма латинского «Ахиллес», что, возможно, означает «он… Имена придают идентичность каждому». Как использовать генератор тем: Иногда название документа выбирается за вас — учитель может заранее определить заголовок.Название Leocadio означает «яркий ясный свет». В нашей базе данных более 5000 кличек собак: 365 умных предпринимателей. Мы приглашаем вас получить ваше гавайское имя Почтовый индекс Генератор. Навигация по сообщениям. Вы можете экспортировать модель проекта вручную. Альтернативные варианты написания — Aidan, Aedan, Aydin, и все они символизируют одно и то же значение. Название индийского ресторана. Легко создавайте собственные 3D-карты для встраивания, загрузки или 3D-печати. . Генератор чешских имен может генерировать тысячи идей для вашего проекта, поэтому не стесняйтесь нажимать и в конце использовать удобную функцию копирования, чтобы экспортировать свои чешские имена в текстовый редактор по вашему выбору.Pea-Chopper Sleazy South Dakota Outback Milkbottle.
Женщина, заключенная в тюрьму за отравление пасынка, была помещена в одиночную камеру после того, как испытала серьезную карму, когда сокамерники отравили ее в отместку за ее преступления. Вы также можете выбрать календарь по стране. 1. Только некоторые из созданных нами инструментов включают генератор случайных названий команд, краткий список названий команд, возможность голосовать и оценивать названия любимых команд 1322 друзей по переписке 100 лучших колумбийских имен — Колумбия См. Также имена из Колумбии вверху -Имена.Секретный ник. Пожалуйста, относитесь к своей семье как к семье. 3D карты. Йорденис. Имя парня из вечеринки. Генератор имен плейлистов. Я нашел эти дополнительные ключевые слова = тортилья, гойя, начос, текс-мекс, горячее, кальенте, кантина, традиционный, аутентичный. Список идей бизнес-названий бара, созданных с помощью инструментов генератора имен Чтобы найти удобное для Интернета имя, вам необходимо тщательное исследование. г. Эти цифры говорят сами за себя: более миллиарда случайных имен и профилей! Это идеальный инструмент для создания поддельного адреса, случайного номера телефона, поддельного адреса электронной почты, случайного имени пользователя и пароля.
Получите индивидуальное имя и описание персонажа. Обозначьте конец имени автора точкой; Если авторов более 6, укажите первых шести, а затем укажите et. Если вы предпочитаете случайные результаты, доступен оригинальный генератор названий городов и городов. Создано в 2005 году. Женская форма была популяризирована святой Кларой Ассизской в 13 веке (она называлась… Генератор имен ИТ-компаний. Генератор турецких имен. Этот генератор имеет огромную базу данных, состоящую из сотен стран и территорий.О приложении Сортеос. В этом феврале Селена, наполненная сладкими тонами, — просто потрясающее латинское имя. Как и у тропического острова, кубинские названия пикантны и уникальны. Звук солнечного света. Это… Войдите в город Куба, чтобы сгенерировать Сопутствующие инструменты Генератор кредитных карт Временная почта Улица Почтовый индекс Все U. Если вы ирландец, вам понравится генератор ирландских фамилий. Отличный способ сделать запоминающееся название компании — использовать ритм или аллитерацию, эти типы названий компаний звучат великолепно и чрезвычайно популярны.
Однако испанские имена не всегда следуют линейному пути. Номерной знак автомобиля. Наш генератор городов использует части реальных названий мест в США, Великобритании, Канаде и Австралии, чтобы помочь вам создавать оригинальные, но реалистично звучащие места. Твитнуть. Спорим, вы этого не знали. … 42 115 Женские имена. Вы также можете сгенерировать только фамилии, удалив текст в текстовом поле с надписью: «Имя:», вы можете добавить или изменить имя в 980 греческих детских именах со значениями. Херрера — распространенное кубинское имя? ну, это кубинская фамилия, потому что меня зовут Каролина Эррера, я кубинка и мне всего 10 лет.Когда кто-то видит ваше имя пользователя и получает некоторую информацию, которую вы хотите передать, имя пользователя считается успешным. Heavy Lifter 2. Если вы просто хотите создавать текстовую графику и логотипы в режиме онлайн с использованием скриптовых шрифтов, вы можете воспользоваться нашим текстовым генератором ниже. Фергюсон (шотландское происхождение) пользуется большой популярностью и означает «злой».
Сабрина Рэй. По этому коду почта может различать два адреса с одинаковым названием города, но в разных штатах или на одних и тех же улицах, но в других районах. Предыдущая страница.Например, компании, расположенные в Соединенных Штатах, обычно будут называться как-то по названию популярного города в Соединенных Штатах. Заррия. Конфеты Ожерелье с индивидуальной гравировкой бусин в позолоте. Уникальные игрушки. 59 долларов. Он не генерирует баллы для таблицы лидеров. 23 900 компаний. Присылайте свои забавные никнеймы и крутые теги игроков и копируйте лучшие из списка. Следовательно, кубинские имена, ямайские имена, имена гаитянских девочек и тринидадские имена стали известными в последние несколько десятилетий.200+ львиных имен — громкие имена для свирепых животных из семейства кошачьих. Турция, как населенный пункт суши, невероятно стара. От греческого Андрея. Попробуйте Essay Topic Generator от PapersOwl, чтобы найти творческие названия для своих научных работ. Чемпион в тяжелом весе. Смотрите также имена с Кубы в Top-Names.
Пожалуйста, введите свой адрес электронной почты, чтобы получить бесплатный доступ к нашему генератору имен собак и найти идеальное имя собаки за 7 проверенных шагов. Твитнуть в Твиттере. Имена и другие художественные произведения. Наш алгоритм искусственного интеллекта объединяет общие слова, случайные слова, префиксы, суффиксы и ключевые слова для поиска, чтобы создать домен. Чтобы использовать генератор, просто нажмите кнопку, и появится новая фамилия.Окончательный генератор имен собак. Женские имена. Мы потратили 3 года на сбор данных по каждой стране, чтобы создать эту огромную базу данных. Для просмотра доступны города, поселки и деревни более чем 100 стран. Ознакомьтесь с теми, которые я создал с помощью списка ключевых слов, который я создал с помощью предыдущих шагов. Кубинские детские имена Кубинские имена используются на Кубе, в Карибском бассейне. Каландрия Нета. Мы предоставили вам потрясающее кубинское детское имя, производные, а также несколько псевдонимов ниже. Принесите в….
Окончательный генератор имен списков воспроизведения. Океан — это большой темно-синий водоем, который также является идеальным названием для собаки. 95. дизайн татуировок детские имена 2014, идеи татуировок в южной африке, татуировки в виде стрекоз, онлайн-редактор изображений бесплатный пример преобразования, женские цветочные татуировки рукава 2014, редактор тату-камеры apk, генератор шрифтов для татуировок на разных языках Популярные имена мальчиков на Кубе. Создайте карту прямо сейчас. Ящик для игрушек. вопрос, на который будет дан ответ в вашей статье. 3120 Collins Avenue Miami Beach, Майами, США, FL 33140.Даже если вы думаете, что идея сценического псевдонима лишена изящества, название в стиле хип-хоп в урбанистическом стиле — развлечение для всей семьи. Затем вы можете сохранить изображение или использовать кнопку EMBED, чтобы получить ссылки на изображения. Доминга. Он отозвал военные корабли обратно в Москву. Авторов следует цитировать по фамилии, а затем по инициалам (д. Используйте список ниже, чтобы найти свою фамилию и узнать о ее значении и происхождении.
Тяжелобронированные машины с огромной мощной огневой мощью. Генератор дотракийских имен; генератор валирийских имен Факты Дятел Факты Окапи Факты Маскированная пальмовая циветта Факты Факты о поденках Факты о навозных жуках Галапагосский пингвин Факты Кубинская древесная лягушка Факты Большеглазые жуки Факты Рогатая сумчатая лягушка Факты Факты о перентибах Факты об антилопах Факты об устрицах Висаянская бородавчатая свинья Женщина была заключена в тюрьму за отравление пасынка после того, как она испытала серьезную карму, когда ее сокамерники отравили ее в отместку за ее преступления.«Тибурон», что означает «акула», является мужским примером имени из языка таино. Наш сайт позволяет вам генерировать имена, которые являются случайными или специально подобранными для вас на основе генератора случайных фамилий для вашего следующего проекта. Русское имя Генератор — вы можете сгенерировать 30 случайных русских названий. На Кубе наблюдается тенденция в сторону от эксцентричных названий. Deveaux French, Bahamian Creole.
Указан ссылочный код. Список современных городов состоит из тысяч населенных пунктов по всей планете. Британское английское название Генератор Обновить.Тяжелоатлет. Испанские фамилии, начинающиеся с L Flags Mashup Generator. Мы можем генерировать мобильные номера для более чем 200 стран. мальчик Серхио — итальянец, португальские кубинские детские имена. От названия местности возле города Аспейтиа в Стране Басков в Испании, происходящего от баскского loi, означающего «грязь». Менендес выиграл. Гарсия потратила три десятилетия, исправляя людей в произношении и написании своего имени. Добавьте буквы, которые вам нравятся, выберите пол и длину имени, и наш гид поможет вам сделать выбор и выбрать имя из каталога, который насчитывает почти 100 000 имен! И помните, делитесь своими идеями и прислушивайтесь к советам окружающих.Фэй (французское происхождение) означает «бук». Он был введен почтовой службой США для проверки правильности адреса доставки. Случайные испанские — мужские имена в Колумбии Щелкните имя, чтобы скопировать Щелкните заголовок таблицы, чтобы отсортировать таблицу.
Генератор детских имен Создавайте имена для мальчиков и девочек одним щелчком мыши. Вы можете удалить его с колеса, используя кнопку «Удалить». БРАЗИЛИЙСКИЙ ГЕНЕРАТОР ИМЕНИ Если бы вы играли за Бразилию, как бы вас звали? Страница, на которой будет создан псевдоним бразильского футбола на основе вашего настоящего имени.S & M2 — КУПИТЬ / СЛУШАТЬ СЕЙЧАС. Найдите потрясающий фирменный стиль, названия компаний или названия компаний для своего бизнеса с помощью нашего генератора названий компаний и генераторов названий компаний. Самые популярные имена 1950-х годов: Домашняя страница: Планировщик овуляции: Duedate Calc: Детские имена: Неделя за неделей: Мальчик или девочка?: Карта сайта: 1000 самых популярных имен 1950-х годов: Все имена взяты из приложений карты социального обеспечения для произошедших рождений В Соединенных Штатах. Хорошее имя должно быть запоминающимся и отражать характеристики вашей группы.Турция — большая страна на северо-востоке Средиземного моря. 65 Создать. Найдите понравившийся дизайн и измените цвета, шрифт и макет.
Примечание. Электронная почта, пароль, адрес и имя, сгенерированные с нашего веб-сайта, на 100% действительны для использования, но сгенерированные здесь электронные письма не работают как реальный адрес электронной почты. Куба: Кипр: Чехия: Дания: Доминиканская Республика: Демократическая Республика Конго: Эквадор: Египет: Эль_Сальвадор Случайный адрес Пакистана Случайные номера телефонов Бермудских островов Случайные номера телефонов Папуа-Новой Гвинеи Случайные номера телефонов Швеции Генератор имен волков Генератор имен автомобилей Генератор имен священной книги Правоохранительные органы Агентство Генератор Имен Магия Типы Имена … Женщина, заключенная в тюрьму за отравление пасынка, была помещена в одиночную камеру после того, как испытала серьезную карму, когда ее сокамерники отравили ее в отместку за ее преступления.Случайное мексиканское имя (имя и отчество) для начала. «Сам Родриго означает« могущественный »или… Полный список имен кубинских девочек от Аризоны, полный со значениями имен и происхождением всех имен кубинских девочек.
Холлоуэй. Имя персонажа имеет значение в мифе о« Звездных войнах ». Пожалуйста, введите свое первое Имя. В этом сила начисления процентов, поэтому лучше начинать инвестировать как можно раньше. Дейрон. Если фанаты узнали что-нибудь от Хана Соло, Бена Соло и FN-2187 за последние несколько лет, то имя … Fake Israel Name Generator FauxID.Zarcos. Вся информация на этом сайте является поддельной. Fake Это бесплатный инструмент для создания полных поддельных удостоверений личности со случайным именем и фамилией, адресом, номером социального страхования, кредитной картой, банковскими номерами IBAN, номером телефона и т. Д.! Генератор / калькулятор IBAN и кредитных карт работает по реальным алгоритмам. Майами. Загрузите фото или сделайте снимок. Роберто — итальянское, португальское, а испанская форма — Роберт. Тем не менее, с бесплатным и этичным сервисом Fake Numbers вы можете быть полностью уверены, что все сгенерированные номера телефонов / контактные номера в США действительно на 100% не работают.
Современные танки быстрее и лучше, чем когда-либо, способны противостоять лучшему противотанковому вооружению. Наш инструмент позволяет создавать разметку схемы RDFa и JSON-LD для данных разметки Person, Organization, Logo, Article, Review, FAQ, How To, Product, Event, Local Business, Recipe, Video и Breadcrumb. Этот сайт был создан как бесплатный ресурс этимологии и ономастики для поиска истории и значения имен. Названия конференц-залов добавляют индивидуальности вашему офису и отражают его в целом. Выбираете ли вы французские детские имена с Гаити или испанские имена с Кубы, определенно есть несколько интересных вариантов, которые популярны в Карибском бассейне.Страна: Любая страна Афганистан Аландские острова Албания Алжир Американское Самоа Андорра Ангола Ангилья Антарктика Антигуа и Барбуда Аргентина Армения Аруба Австралия Австрия Азербайджан Багамы Бахрейн Бангладеш Барбадос Беларусь Бельгия Белиз Бенин Бермуды Бутан Боливия, Многонациональное Государство цитата. Что такое генератор разметки схемы? Генератор разметки схемы — это инструмент, который помогает добавлять структурированные данные на ваш сайт.
Охотник-пулеметчик. Богатый владелец гаванского клуба и его семья раздираются жестокими социально-политическими потрясениями, вызванными переходом от диктаторского режима Батисты к марксистской революции во главе с Фиделем Кастро на Кубе 1950-х годов.Придумайте идеальное название для воображаемого города или выберите его случайным образом с помощью нашего автоматического генератора названий городов. В выбранном вами календаре будут отображаться даты праздников и памятных дат, соответствующие выбранной вами стране. Добро пожаловать. 365Предприниматели понятны своей аудитории. Используйте этот генератор имен, чтобы дать имя вашему сеансу. Кубинский генератор имен | FMSPPL FMSPPL Генератор кубинских имен: узнайте, каким было бы ваше кубинское имя, если бы вы были кубинцем, с помощью нашего генератора кубинских имен. Это имя также очень распространено в Британской Вест-Индии, особенно на Ямайке.Генератор фантазийных имен Квазиисторические имена генерируются с использованием шаблонов, полученных из реальных названий определенного региона и периода, но в остальном являются вымышленными.
Просмотрите список ниже и узнайте свое гавайское имя. Эти номера соответствуют ссылкам, перечисленным ниже, где были найдены имена. Старые воспоминания. 95 $ 59. Имя Софии, которое на протяжении десятилетий было одним из ведущих имен для девочек, возникло в Греции. 420 405 Номера телефонов. некоторая справочная информация по вашей теме. Наш генератор доменных имен анализирует ключевые слова, введенные вами в наш инструмент поиска доменных имен, и предлагает лучшие идеи доменных имен для вашего бизнеса.Мы будем добавлять новые генераторы по мере сбора новых фамилий. После кризиса между Вашингтоном и Москвой была установлена горячая линия. Создайте свой собственный. Это имя стало очень популярным в Соединенных Штатах в 1920-х и 1930-х годах. Vol. 98 друзей по переписке. информация: [Имена ДЕВУШКИ] -… Введите город Кубы, чтобы сгенерировать сопутствующие инструменты Генератор кредитных карт Временный почтовый индекс Улица Почтовый индекс Все U. Генератор имен «Звездных войн»: с помощью этого инструмента генерации вы можете сами генерировать имена «Звездных войн».
Самый простой способ провести мозговой штурм по ключевым словам для использования в генераторах имен — это использовать Google.Генератор имен белых мужчин-снобов из богатых высших слоев общества (смотрит на вас свысока) К какому поколению вы принадлежите? Величайшее поколение (до 1946 года) Бэби-бумер (1946-1964) Поколение X (1965-1984) Тысячелетнее поколение (1982-2004) Поколение Альфа (с 2005 по… Jewish Name Generator. Ракеты на Кубе были удалены, а ракеты демонтированы. Я понимаю, что Я могу отказаться от получения сообщений в любое время, отправив письмо по электронной почте privacypolicy @ wmg. Имена также могут быть основаны на языке таино, например, Ана, что означает «цветок», или Liani, что означает «жена».Эднесс Карибского моря. Если вы пишете рассказ или работаете над другим художественным произведением, вам следует найти множество фамилий, которые вам подходят. Использование генератора названия компании — распространенная ошибка, в которую попадают многие начинающие предприниматели.
BabyNames. В наши дни в некоторых частях света есть множество ресторанов, где готовят рико тако, энчиладас, арроз кон полло, тапас и другие испанские и латиноамериканские деликатесы. Он создает случайные имена персонажей, которые являются крутыми и забавными, и делает полезные имена для предприятий, детей, групп, фэнтезийных игроков и музыкальных исполнителей.Название песни Майкла Джексона. В конце введения вы изложите свой тезис. One-Man Army 2. com имеет … Создайте свой собственный регион покемонов с названием, страной, на которую можно вдохновиться, типами тренеров-боссов и набором особых покемонов. 5. Это седьмой выпуск в нашей серии Great Grooves. Было нелегко найти варианты имен, поэтому я спросил читателей, что используется в их семьях, и, чувак, у меня есть для вас список! Вот все предлагаемые имена и прозвища бабушек и дедушек в алфавитном порядке.Вы можете ввести тип кухни или город, в котором находится ваш ресторан, и вам будет предложено более 100 названий. Называя свой кубинский ресторан, апеллируйте к кубинской культуре и географии.
Крейгсмарины были немецким флотом, Вермахт — регулярной армией, а Люфтваффе — военно-воздушными силами. 13. Не забудьте рассказать нам об истории успеха на service @ reedsy. Вы можете создавать неограниченное количество поддельных имен и настоящих писем. Вы можете сообщить генератору, что вы предпочитаете, выбирая различные фильтры. Танки — одна из самых символичных и узнаваемых машин войны.Введите свое имя (необязательно) или оставьте поле пустым для случайного выбора: Имя: Фамилия: Мужской Женский. Чтобы помочь вам найти уникальное имя для своего ребенка, мы разработали инструмент для создания детских имен. Если это так, проблема решена! Однако часто вам приходится выбирать название для себя. Если вам нужно найти фамилию для писательского проекта или ролевой игры, тысячи возможностей, которые мы предлагаем, обязательно включают в себя идеальное имя для вас. Самый популярный «Затерянный город»: режиссер Энди Гарсиа.Это отличное название для бизнеса группы предпринимателей. Этот список представлен в виде обычного текста, но вы можете использовать наш REST API для получения в формате JSON.
Если вы ищете имена на суахили, этот генератор имен на суахили станет отправной точкой! Каждое имя генерируется компьютером, и мы рекомендуем вам провести дальнейшие исследования традиций и значений именования для вашего конкретного региона. Гектор Катя. Мы поделимся некоторыми уникальными идеями и советами по названию вашего первого ресторана. Мы предоставляем названия команд фэнтези-футбола, названия команд фэнтези-бейсбола, названия команд фэнтези-баскетбола, названия команд фэнтези-хоккея или названия фэнтезийных команд для любого другого вида спорта или деятельности.Мужские итальянские имена. Смотрите последние кубинские имена мальчиков и девочек на Mom365. Кубинский блок. В списках Второй мировой войны G- означает Германию (или, как местные жители называют ее Deutschland). Уильям Тертл Сандерс. Игрушки из печенья. Лучший генератор имен собак, на самом деле у нас есть 3 генератора, которые помогут вам найти лучший способ дать имя вашему щенку. Музыка сельской местности, известная под общим названием musica campensina, дала начало гуахира, лирической, сладкой музыкальной форме, которая превозносит достоинства земли и красоту Кубы, а трова, еще один сельский стиль музыки восточной части острова.
, разносит новости и сплетни, часто через сатиру.«Выберите страну и создайте поддельные номера телефонов. Все эти сгенерированные случайные номера телефонов действительны и соответствуют правилам для телефонных номеров. Киберпанк — это вымышленный футуристический стиль, который часто показывает более суровое и менее гламурное видение будущего. Телефонный код страны +43. Идель. От. 72. Это длинное имя: мое настоящее имя, лол, молись за меня !! 13 »Довольно много подводит итог (в пятницу, 1 апреля 2016 г.) сказал:« Я думаю, что лучший из них — Антонио де Падуя Мария Северино Лопес де Санта Анна и Перес де Леброн.Нагреватель тренажерного зала 3. Ранги Второй мировой войны указаны как Вторая мировая. Эти прозвища были составлены на основе информации о популярных бандах по всему миру. Выбрав название, просмотрите эти логотипы ресторанов. Поэкспериментируйте, вводя различные ключевые слова — одиночные и множественные — в инструмент генерации бизнес-названия бара, чтобы генерировать креативные идеи названий.
Его население составляет более 82 миллионов человек, около 80% из которых считают себя турками. Марипоса Майела. Гора Ренье.Улица: Bayerhamerstrasse 33 Город: Глабегг Штат / провинция / область: Каринтия Телефонный номер 0680 243 22 12. Генератор имен — это бесплатный инструмент, созданный для двойной цели: вдохновения и развлечения. Вот несколько примеров для начала: Название компании. Это поможет вам понять, какие еще существуют названия кубинских ресторанов и какие названия популярны среди предприятий вашей отрасли. Рядом с каждым списком в скобках указан номер или серия цифр и букв, например (2) (6A) (9) (29).Cities Генератор поддельных имен Случайные номера телефонов Генератор тегов игроков Генератор случайных имен пользователей Генератор мемов Размер iPhone 13 Великолепный кубинский остров — это страна сокровищ, полная экзотических детских имен для девочек и мальчиков. com — это бесплатный инструмент для создания полных поддельных удостоверений личности со случайным именем и фамилией, адресом, номером социального страхования, кредитной картой, номером телефона и т.
д. !. [33M +] Генератор имен гномов, достойный глубоководных гномов. Более 10 000 000 никнеймов Free Fire; Сгенерируйте псевдоним Free Fire, рандомизируйте имя пользователя с особой красотой характера; Функция самоидентификации, сравнение уровня HOT в Free Fire Name хороша. Вы можете найти хороший заголовок Free Fire, введя имя и нажав Search.За несколько сотен лет границы были установлены, изменены и разрушены, что затрудняет отслеживание семейной истории. Уверяем вас, что это будет отличный инструмент для вас, если вы хотите путешествовать за границу, но не можете решить, в какую страну вам следует поехать. Самые популярные африканские фамилии в семье: Ba, Ballo, Diallo. определение. Список имен, в которых используется испанский язык. Все детали генерируются случайным образом. Щелкните источник, чтобы получить дополнительную информацию о различном происхождении кубинских имен.Даже если это не так, это идеальный инструмент для тех, кто ищет ирландское имя для использования. Это в меньшей степени относится к именам, но на этой странице вы можете найти генератор псевдонимов и случайный выбор имени пользователя на основе имени Cuban.
Создавайте случайные места со всего мира. + Добавить в мой список Родственные имена. Создавайте идеальные имена персонажей с помощью инструмента генератора имен персонажей NameGenerator-Engine, указав пол, титул, вкус, тип персонажа и национальность. Даниил — популярное имя во всем мире, вероятно, из-за его христианского происхождения, но придумать прозвище для кого-то по имени Даниил может быть непросто.В следующей таблице показаны 200 самых популярных имен младенцев мужского и женского пола, родившихся в 1920-х годах. (1) 786 496 5730. суды для U. В более ранние эпохи имена и фамилии часто указывали, где кто-то жил, кем были их родители, или … Случайное колесо — это открытый шаблон. Общее время можно изменить, отрегулировав продолжительность в разделе «Контроль времени». ПРИМЕЧАНИЕ. Максимальное количество символов до 15 для каждого имени и только алфавиты. Воспользуйтесь интерактивным аудиомикшером ниже, чтобы услышать, как звучат все шесть партий ансамбля в Гуагуанко (wah-wahn-KOH), одном из трех основных типов традиционной афро-кубинской румбы.Лойола испанский, баскский. мальчик Яркая слава. Просто нажмите на колесо (неважно, куда вы щелкнете), и оно начнет вращаться. Этот генератор имен сгенерирует 10 случайных испаноязычных имен. Итак, это не вымышленные имена,… 450 идей и предложений для причудливых названий ресторанов. Генератор названий городов и населенных пунктов использует базу данных, содержащую более пяти миллионов имен в более чем 150 странах. История испанских фамилий. Попробуйте один из наших забавных генераторов имен, а затем поделитесь своим новым именем с друзьями. com.Клиенты точно знают, что получают. Когда вы думаете о кубинских детских именах, на ум приходят некоторые имена: Марица, Марисоль, Хуан и Роберто — однако есть множество других, которые также потрясают. Странный хакерский текст известен как текст «zalgo», но иногда люди называют его «сумасшедшим текстом», и, вероятно, это то, для чего большинство людей используют этот переводчик. ком! И если идеальное испанское имя все еще манит солнце, остальная часть Интернета поможет вам. На иврите это пишется как «Даниил», что переводится как… О причуде.Если вы ищете случайное название города или городка, чтобы найти место для книги, игры или сценария, у вас под рукой миллионы возможностей. Наслаждаться! Какие хорошие чешские имена? В этом генераторе есть тысячи случайных чешских имен. Лин Берри. Во-вторых, использовать его: к настоящему времени вы его настроили. Faber, Coe and Gregg Inc. Генерация имен, адресов, номеров социального страхования, номеров кредитных карт, профессий… Генератор поддельных имен — удобный способ быстрого заполнения регистрационных форм для тестовых сайтов и приложений.Билокси Медвежатник Питтман. Выбранная запись появится на экране. однако вы также можете использовать наши случайные номера телефонов при размещении задокументированных примеров на веб-сайтах или в печатной литературе. Их названия, которые описывают обломки кораблекрушения, которые плавают на поверхности и выносятся на берег, несомненно, вдохновлены океаном в подтеме парусного спорта. Девон Ямайский Патуа (Современный, Редкий) Имя Девон имеет английское и ирландское происхождение и означает «Воин Бога». Теперь вы можете сразиться с другими ведущими и ди-джеями в мире рэпа и хип-хопа.См. Наш список ниже для идей или воспользуйтесь нашим генератором названий кубинских ресторанов. 67 долларов. Генератор кубинских имен Введите свое имя ниже, чтобы узнать свое кубинское имя. ВСЕ ИМЕНИ. Вы сможете легко найти имя, которое может легко ранжироваться в поисковых системах и, следовательно, привлекать интернет-трафик на ваш сайт. Имя тусовщицы. Имена милых кубинских мальчиков, которые стоит учитывать (со значениями) 1. Присутствие 365 в его именах означает круглосуточное обслуживание, каждый день в году. Дэн Гастингс — 3 января 2020 г. Генератор имен персонажей на суахили На суахили говорят 5 миллионов человек в Восточной и Юго-Восточной Африке.Название: Название региона, например Канто и Синно. Вдохновение: Страна, на которой основан регион (то есть. Вот мои идеи имени после мозгового штурма: Операция Опера. Ваше Настоящее Имя. О нас. Означает «долин», производное от французского val «долина». Многие имена имеют сокращенную версию, используемую в качестве псевдонима (псевдоним в скобках). 4 Обложка Super Deluxe. Случайные почтовые индексы »Генерация случайных пятизначных почтовых индексов с правильным названием города. Проверьте это! Здесь Вот имена некоторых кубинских мальчиков — сейчас самое время это сделать.Янкиль. Прокрутите страницу и подберите похожие слова. Случайные имена. Пожалуйста, введите свою фамилию. Сантьяго. тату дизайн детские имена 2014, идеи татуировки южной африки, татуировки искусства стрекозы, онлайн-редактор изображений бесплатный пример преобразования, женские цветочные татуировки рукава 2014, редактор камеры татуировки apk, генератор шрифтов татуировки на разных языках испанский — Colombia Male Name Generator. Плохая репутация никогда не подчеркивает, что мальчик или мужчина — зло. Взгляните на наш полный список самых популярных имен девочек во всех культурах здесь.Следующая статья. Лозано испанский. 1 2 3 3 Список имен кубинских мальчиков (A-Z) — страница 2 — от «Бернардо» до «Хосе». Но в греческих детских именах есть еще много чего. Это были одни из самых популярных фамилий в испаноязычном сообществе, которые использовались веками. Кризис с кубинской щетиной 3. Самый продвинутый генератор имен Генератор фальшивых имен, использующий 37 языков и 31 страну, является наиболее совершенным генератором имен в Интернете. Используйте наш ГЕНЕРАТОР ИМЕНИ RAP STAR, чтобы присоединиться к веселью. Получите вдохновение для детских имен с нашими самыми популярными кубинскими именами для девочек, которые сейчас в тренде.Пол. App-Sorteos. Означает «богиня луны», это альтернатива имени Луна, которое имеет то же значение. Вы также можете попробовать наш Создатель имен собак Sui Generis, чтобы создать уникальные имена для собак. через Pexels. Дело не только предоставило Менендесу и Гарсии права на торговую марку на продажу сигар по случайному адресу в Австрии. Бесплатный доступ к 38000 именам собак в нашем генераторе имен собак. Эта страница предлагает множество имен Minecraft, некоторые интересные, некоторые крутые, некоторые уникальные, легко найти правильное, если вы не найдете нужное, вам просто нужно … Советский лидер Никита Хрущев пришел в себя.Некоторые имена или предметы могут быть получены из видеоигр, фильмов, телевидения или других источников, и … Генератор случайных имен учетных записей используется для генерации некоторых случайных имен учетных записей. Юлийский. Вы можете использовать следующий инструмент для создания текстовой графики на основе вашего выбора цветов, текстовых эффектов и размеров с использованием скриптовых шрифтов за секунды. Зермено. Вот список из 130 креативных названий испанских ресторанов с соответствующими значениями. Кубинские имена — 100 лучших имен на Кубе и статистика. Откройте для себя наш стильный бутик-отель в Майами.более миллиарда случайных имен и профилей! Это идеальный инструмент для создания поддельного адреса, случайного номера телефона, поддельного адреса электронной почты, случайного имени пользователя и пароля. Кубинские рестораны продают настоящую кубинскую еду, в том числе аррос кон полло, пикадильо и юку. 95 $ 49. 64. При нажатии на него будет сгенерировано новое имя колеса рулетки. 3. ком. Есть так много разных категорий имен на выбор. 100% без риска. расположение, 100 футов от пляжа. Испанские фамилии начали расти примерно в 12 веке как способ различать мужчин с одинаковым именем.Убедитесь, что название, которое вы выбираете для своего игрового магазина, должно быть броским и привлекательным, чтобы вывести ваш бизнес на новый уровень. — У кубинского сэндвича было немного истории. Вот некоторые из других наших любимых испанских генераторов имен в сети: Вы можете найти имена для персонажей в книге, пьесе, фильме, игре и т. Д. Название песни Тейлор Свифт. Имя доктора Идеи Простые темы для вечеринок Футбольные псевдонимы нет PoKeMoN Go Генератор имен PoKeMoN Go Генератор имен 2 Генератор идей игры Генератор идей карты Генератор имени клана Сгенерируйте имя для вашего клана, команды или фракции.Создать. Электронная почта PNR (необязательно) PNR, также известная как запись имени пассажира, представляет собой номер с уникальным 6-значным номером, который указывается для каждого забронированного билета. Это важно по нескольким причинам, в том числе: вы будете знать, если кто-то уже выбрал имя, которое вы хотите использовать, и это остановит вас. Кубинская сигара: слово «кубинская» здесь всегда будет работать. Просто выберите категорию из «Случайно», «Spotify», «Смешные», «Эстетические» или «Креативные», нажмите кнопку и найдите подходящее название! Чтобы узнать о более конкретных генераторах имен, основанных на настроении и жанре, пропустите.Это лишь некоторые из странных имен, которые можно найти среди 149 спортсменов, представляющих Кубу Альваро: Кубинское имя с большим талантом, мы считаем, что Альваро может пересечься. Описание. 39 долларов. Итак, когда на свет появился ее первенец, три года 546412166 — выдано в Оклахоме (Оклахома) 20.04.2018, истекает 09.09.2022. Эксперимент в новом виде музыки — стало возможным благодаря Wolfram Language и A New Kind of Science. Имя возродилось в современном мире благодаря уменьшительной форме Lola.Независимо от того, являетесь ли вы профессионалом или играете просто для удовольствия, этот генератор должен дать вам несколько идей! none Этот генератор придумывает креативные названия ресторанов. Леокадио. Вот несколько примеров из того же: Kidland. Если вы студент, академик или преподаватель, и вам надоели другие инструменты библиографии и цитирования, то вам понравится MyBib. 6. com и связанные с ним сайты. Известные кубинские детские имена с английским значением »Список популярных кубинских имен для девочек и мальчиков. Воспользуйтесь нашим бесплатным генератором случайных фамилий и перестаньте ломать голову над идеальной фамилией для вашего следующего персонажа.com — это бесплатный онлайн-инструмент для создания розыгрышей, розыгрышей, конкурсов и рекламных акций в Instagram, позволяющий выбрать случайный комментарий из URL-адреса фотографии в Instagram. Независимо от того, бронируете ли вы билет онлайн или физически (через билетные кассы), билет обязательно будет иметь номер PNR. Кубинский ракетный кризис научил Соединенные Штаты, что такое сдерживание. Викторины Имена Видео Юмор. Киберпанк-генератор имён. Сарагоса. Гонконгский конус 3. Quique Xalvadora. Смешайте клюкву, сок, коричневый сахар, 1/4 чайной ложки душистого перца и всю соль в средней кастрюле на среднем или сильном огне.Happy Springs Вложение денег, хотя и сопряжено с риском, может помочь вам в достижении ваших финансовых целей — будь то покупка автомобиля через несколько лет или создание «сбережения» для выхода на пенсию. Вам нужно только выбрать пол и указать сгенерированное количество (за раз может быть сгенерировано до 100). Мы никогда не советуем нашим клиентам никогда не использовать генераторы названий компаний для поиска названия для своего нового бизнеса. Для каждого ранга и пола в таблице указаны имя и количество появлений этого имени. Unova — это… Узнайте об этническом происхождении и значении фамилий.69 долларов. Кубинское болеро, выросшее из трова, является воплощением … Модное мужское имя, такое как Леонардо, может быть идеальным выбором для вашего мальчика, поскольку оно означает «храбрый как лев». Мужчина Женщина: Имя: Фамилия:… Генератор латино / латиноамериканских имен. При создании этого генератора я обнаружил, что необходимо иметь имя и читать имя и фамилию вместе, поскольку некоторые комбинации имен и фамилий звучат лучше, чем другие. Большинство людей имеют некоторое представление о значении своего имени или происхождении его имени.мальчик Сент-Джеймс. Феликс (португальское происхождение) — одна из фамилий с буквой F, означающая «счастливый» или «везучий». Имя чудака. Этот генератор имен сгенерирует 10 случайных турецких имен в их латинизированной форме. Леонардо — имя немецкого происхождения, довольно популярное среди испанцев. Мы даже можем создавать поддельные платежные реквизиты для Visa, MasterCard, American Express и даже IBAN. com) Каждый раз, когда вы пытаетесь составить случайный номер телефона в США самостоятельно, высока вероятность того, что ваш номер окажется действительным.Вы можете указать пол и количество для создания. Генератор английских имен — вы можете сгенерировать 30 случайных британско-английских имен. Этот генератор лучше всего подходит для таких ролевых игр, как World of Warcraft, Guild Wars, Tera, Elders… Fake Phone Number Generator. Зарабатывайте собственные игровые деньги, помещая свое изображение. Ваша любовь к ребенку безупречна и предназначена для того, чтобы осветить его будущее. Могут существовать летающие машины, лазерное оружие и передовые технологии, улучшающие все аспекты жизни, но в центре внимания киберпанка больше всего 18 Селен.Список «Звездных имен, космических имен, звездных имен» от starsandstripes из 65 великих имен: Алула — Зания! Просто выполните 3 шага: Найдите, выберите и получите идеальное доменное имя! Наш онлайн-генератор бизнес-названий даже позволяет дополнительно фильтровать результаты по местоположению, отрасли и доменному имени для получения более индивидуализированных, креативных и … Как только вы поднялись до уровня, когда у других членов банды есть псевдоним для вас, больше не будет выбраться, потому что для большинства банд смерть — единственный выход из банды.al. Тогда генератор испанских имен здесь, чтобы помочь! Выберите из списка имен. Защитите свою конфиденциальность, используя свою настоящую личность только в случае крайней необходимости. Back Stage Productions. Откройте для себя идеальный бренд для вашего стильного магазина сигар с помощью нашего бесплатного инструмента для создания названия компании. Левой Г. Узнайте, как фамилии ранжируются по популярности, сколько людей в Соединенных Штатах Америки носят определенное имя и как меняются статистические данные между переписями США 1990–2000 годов.Как и когда фамилии были приняты в неевропейских культурах? Фамилии происходят от коренных народов, колонизаторов и диаспоры. 0:00 / 0:15. Мужские имена »Найдите случайное имя для своего новорожденного мальчика! Традиционные и нетрадиционные имена для мужчин, таких как Фрэнк, Карсен, Оскар, Трей, Брайс, Джон, Натан или Шелдон. Нажмите кнопку «Обновить». Нажмите, чтобы узнать больше об имени Куба на BabyNames. Обновите страницу, чтобы сгенерировать дополнительные генераторы имен. Подпишитесь на нас или на одну из наших многочисленных популярных групповых форумов: мы участвуем в программе Amazon Services LLC Associates, партнерской рекламной программе, разработанной для того, чтобы мы могли получать вознаграждение за счет ссылок на Amazon.Последний твит от FlagsMashupBot. Названия команд Футбол Гольф Теннис Генератор названий Бейсбол Хоккей Боулинг. Всеотец 2. Изображение: facebook. интересный факт. Великолепный кубинский остров — это страна сокровищ, полная экзотических детских имен для девочек и мальчиков. Щелкните, чтобы перейти к генератору названия команды ↓. Дешевый русский Рэмбо, предложенный MDN 1. Прежде чем вы придумаете название кубинского ресторана, неплохо было бы изучить другие предприятия в вашей отрасли. Серджио. Тестовый текст. [1] [2] [3] ABELE: итальянская форма еврейского Hebel, что означает «дыхание, дыхание.Каждая кубинская фамилия имеет значение и уникальную историю. ), без запятой между фамилией и инициалами, без точки после инициалов или пробелов между инициалами. Было время классическое, и миром детских имен правили традиционные имена. Если вам не хватает слов, попробуйте наш генератор названий компаний. Генерируйте имена, адреса, номера социального страхования, номера кредитных карт, профессии, … Немедленно найдите свои кубинские собачьи имена. Генератор названия компании — ужасная идея для любого, кто начинает новый бизнес.Вольфрамовые тона. Доля. Куба остановила Америку. Компания или организация Generator может помочь вам создать фальшивые названия организаций в более чем 230 странах. Страна Австрия; Улица: Magdalenaweg 6 Город: Höcking Штат / провинция / область: Верхняя Австрия Телефон 0680 686 99 86. Mubashir Rafique. Мы хотим еще раз напомнить вам о нашем генераторе имен столбцов, доступ к которому вы можете получить выше. Золотые скрипучие ожоги. Код страны — это первый номер, который вы набираете, чтобы связаться с кем-либо из другой страны, и нет необходимости набирать код страны, если MyBib является бесплатным генератором библиографии и цитирования, который делает точные цитаты, которые вы можете скопировать прямо в свои академические задания и статьи. .Найдите уникальное детское имя, проверив доменное имя и доступность домена с помощью нашего уникального генератора детских имен Rodríguez (испанское происхождение), что означает «сын Родриго. Мы уважаем вашу конфиденциальность. 72 разных страны. Это имя означает« печаль »на испанском языке. другое название Девы Марии. Генератор имен. Генератор предложит вам выбрать один из открытых в настоящее время проектов CUBA. 1, плохо перемешанный Манхэттен 1, перекус 1, бренди 1, клуб и несколько чипсов 1, кубинский пресс 1, кубинский пресс и крепкий кофе 1, чашка джо и несколько черствых пончиков 1, чашка джо и немного тостов 1, джин с тоником 1, стакан пены 1, чашка хорошего горячего кофе 1, ветчина на ржи со швейцарцами 1, горячий кофе 1, кусок вишневого пирога 1, плохо сделанный календарь Create на любой год.Если вы играете в игру, в которой есть танки или, может быть, вы их купили, этот танк Генератор имен покорных / рабов. Отличный ресурс по именам! НАЗВАНИЯ ГОРОДА НА КУБЕ Список названий городов НАЗВАНИЯ ИЗВЕСТНЫХ КУБИНЦ Список шаблона бесплатных денег, представляющий 1 доллар США. Поля (английское происхождение) — это обычная фамилия, означающая «открытая страна». Создавайте хорошие имена для игр, профилей, брендов или социальных сетей. Джинебра Сабрина. Имя, будь то имя вашего питомца, здания колледжа или вашего ребенка, — это то, на что вы вкладываете много времени и усилий.В главном меню выберите CUBA> Advanced> Export project model. Создайте имя Cuba Libre прямо здесь! Хотите увидеть все наши имена? Просто посетите нашу страницу с 10 000 названиями лодок. СС, конечно, была элитой. Ангус С. Имена расположены в алфавитном порядке. Доминге гаитянский креол. Эйден указывает на свет. Это важно, потому что перебирать все имена из нашей базы данных не очень удобно. 365Предприниматели — это консалтинговая фирма, которая помогает превратить бедных и средних предпринимателей в успешных.5ALN338 — выпущен в Калифорнии (Калифорния) в 2018 году. Оригинальные игрушки. Города Генератор поддельных имен Случайные номера телефонов Генератор тегов игроков Генератор случайных имен пользователей Генератор мемов iPhone 13 Размер Генератор имен персонажей Генерация имен персонажей в один клик. Алан. Ядра Иларио. Почтовый индекс 4780. Марисела Хуанито. Почему у кубинцев такие необычные имена. Генератор имен Minecraft: хорошее имя пользователя или никнейм должны соответствовать тому, что вы хотите вести. — Орландо Хернндес Педросо (кубинский спортсмен) — Уильям Кэмерон Спроул (компьютерный ученый) Вся информация, включая данные кредитной карты, была сгенерирована случайным образом, а не «Каковы некоторые индийские детские имена таино?» Некоторые хорошие имена таино для младенцев, основанные на известных народах таино, включают Абей, Арамана, Качимар, Локильо и Майнери.Подпишитесь на @FlagsMashupBot. Moody Ducks. 200 самых популярных имен были взяты из вселенной, включающей 11 373 015 рождений мужского пола, а в BrandCrowd есть сотни случайных логотипов, которые вы можете настроить всего за несколько кликов. Хизер Грей преподает утонченное искусство сенсорной терапии на курсах альтернативного образа жизни БДСМ в качестве ветеранской Госпожи и Госпожи. 420 фунтов сенпай 1. Феррейра (латинское происхождение) — очень распространенная фамилия, означающая «железо». Идея состоит в том, чтобы начать широко и постепенно приближать читателя к основной идее статьи.Время и дата. Когда мы говорим о греческих детских именах, в первую очередь приходят в голову Аполлон, Александр, Афродита и Троян. Этот генератор случайных имен может предлагать имена для младенцев, персонажей или что-нибудь еще, что нужно назвать. Фиоре (итальянское происхождение)… Как и во многих других культурах, фамилии испанского происхождения являются производными от фамилий, географических названий, описательных имен или названий занятий. Имя Эйден произошло от гэльского слова «Aodh», что означает «огонь», и «an» в последнем является ирландским суффиксом.19 августа 2014 года, Яниц Гарсия и ее дочь Оливия позируют для фотографии на фоне фрески с кубинским флагом в Гаване, Куба. Зардо. … Наш генератор имен позволяет вам создать имя, содержащее до пяти компонентов, поэтому имя может быть коротким и приятным или двустворчатым и шикарным. Просто выполните 3 шага: Найдите, выберите и получите идеальное доменное имя! Наш онлайн-генератор названий компаний даже позволяет дополнительно фильтровать результаты по местоположению, отрасли и доменному имени для получения более персонализированных результатов. Ваша цель здесь — создать список слов или имен, которые приходят на ум, когда вы думаете о вашем бизнесе.Кубинский сэндвич поджаривается и подается со свининой, ветчиной, сыром и горчичным соусом, а затем подается нам, чтобы удовлетворить наши вкусовые рецепторы с абсолютной радостью. Имя Кларус носили несколько ранних святых. Выделяйте различные ритмические части и создавайте оригинальные миксы, регулируя уровни инструментов, включая соло, приглушение и панорамирование … Исаак и Нора (Isaac et Nora), двое талантливых братьев и сестер из Кемпера, Франция (родом из Сеула, Южная Корея, согласно их биографии. YouTube-канал Isaac et Nora) растопили сердца всего мира своим кавером на кубинскую песню «Veinte Años».Роберто. Интернет-источник №1 для детских имен и значений, уникальных детских имен, списков самых популярных детских имен, новостей о детях знаменитостей и многого другого. Благородный; Храбрый. Большинство имен из нашего генератора имен панелей можно использовать бесплатно, но всегда стоит дважды проверить, чтобы убедиться! 5. Гавайские имена. Вы когда-нибудь задумывались, как ваше имя будет переведено на гавайский? Компания Maui Divers of Hawaii перевела для вас некоторые из самых популярных гавайских имен на английский язык. Большой Luchadore 3. 2. Генераторы названий команд на этой странице разработаны специально для того, чтобы либо (1) предоставить вам отличное название команды «из коробки», либо (2) помочь вдохновить вас на создание собственного названия команды с некоторые идеи от самих себя.Передача метаданных проекта вручную. В юридических документах обычно сначала пишется фамилия, затем имя, а затем отчество, которое является именем, основанным на имени отца. Скачать: На главную — Metallicaalways. Случайный адрес, генератор случайных адресов, генератор поддельных телефонных номеров, генератор поддельных лиц. Раскрывая эти смыслы и историю, вы узнаете больше о Кубе, ее людях, традициях, их нормах, культуре и многом другом, чего вы раньше не осознавали. Вы можете использовать эти случайные телефонные номера в драмах, телешоу, радиопередачах и т. Д.Эндрю — святой покровитель Шотландии, в честь которого был назван город Сент-Эндрюс. Всякий раз, когда вы думаете о кубинских именах для мальчиков и девочек, на ум приходят Хуан и Роберто. Валентина Бейнвенидо. com и связанные сайты Генератор клички собак. Бендлин Тарас (Тарасик) (мужчина) Морошкина Влада (женщина) Откройте для себя самые популярные имена кубинских девушек. В этой статье мы поделимся списком крутых никнеймов для гангстеров. 4. Просмотрите библиотеку профессионально разработанных случайных логотипов. Это испанский женский род форма Доминго, которое происходит от латинского Dominicus, что означает «Господа».Acronym Generator, генератор аббревиатур из букв, Acronym Creator, Make an acronym, Name generator, Abbreviation, Backronym Generator, abbreviation maker, name maker, name maker, nickname generator, name combiner, funny acronym generator, How to придумать имя, Назовите проект, назовите компанию, создатель акронима, который имеет смысл, создатель аббревиатуры, который… Ожерелье с индивидуальным курсивом из стерлингового серебра. Большинство имен мальчиков и девочек имеют испанское происхождение, поскольку Куба была испанской колонией, а другие имена ребенка имеют греческое или латинское происхождение.La Cinéphile. Адрес электронной почты, пароль, имя и данные адреса, сгенерированные нашим веб-сайтом, предназначены для данных … Генератор мужских имен Royal предоставляет мужские имена Royal и личную информацию о человеке Royal с его адресом, номером кредитной карты, номером телефона, адресом электронной почты и хобби. Нажмите, чтобы добавить в список избранного. Разжечь. Дэвид Вудс, 29 ноября 2021 г. Эйден. Список кратких и длинных названий приходов и их расположение. В нашей базе данных более 220 000 имен, вы также можете указать язык, национальность и другие факторы, чтобы дать вашему персонажу идеальное имя.Список из 100 испанских — мужских имен Колумбии. 100 лучших кубинских имен — Куба. Эта известная песня из традиционного кубинского репертуара, написанная в 1935 году Гильерминой Арамбуру … Генератор случайных стран: Генератор случайных стран — это инструмент для случайного создания любой страны. Генератор кубинских имен: узнайте, каким было бы ваше кубинское имя, если бы вы были кубинцем, с помощью нашего генератора кубинских имен. Мачо, но тяжелее 1. Этот инструмент — быстрый и простой способ сгенерировать случайные фамилии для вашего генеалогического древа или игрового персонажа, или даже просто немного повеселиться с друзьями! Ваши предки ирландцы? Однако в марте 1972 года Менендес воевал в составе U.Мы надеемся, что эти советы были полезны на вашем пути к именованию в бизнесе. Это второй по распространенности язык в мире после мандаринского, но региональные влияния могут сильно различаться. Используйте Генератор имен стержней. С. Эглис. Страна Австрия; Street: Bonygasse 71 Добавляйте случайные номера телефонов в текст, чтобы легко использовать их в любом приложении или на веб-сайте. info: [] — Выбрать имя для вашего маленького мальчика или девочки — непростая задача. Arm Candy: именной браслет + браслет из шнура. Создай сам! 1000 самых популярных имен 1950-х годов: лучшие детские имена десятилетий.Она предлагает частные интимные сеансы мужчинам, женщинам и парам по обоюдному согласию по всему миру. От испанского losa означает «плитка, плита». — выберите вариант — Афганистан Аландские острова Албания Алжир Американское Самоа Андорра Ангола Ангилья Антарктика Антигуа и Барбуда Аргентина Армения Аруба Австралия Австрия Азербайджан Багамы Бахрейн Бангладеш Барбадос Беларусь Генератор шедевров относится к набору инструментов для создания текстов, созданных Aardgo. Получите имя. Этот случайный инструмент предоставляет случайные телефонные номера Индии.130 креативных названий испанских ресторанов. Он возник на Кубе, который расположен в островном государстве Карибского моря до того, как европейцы вторглись в это место. Мужские имена. Перестановка дизайнов. Имя стриптизерши в Нью-Йорке. Случайный адрес генератора на Ямайке, включая формат адреса города, пример улицы, полный штат и другие города или адрес города. Причина, по которой он делает текст глючным, заключается в том, что в Unicode есть специальная нотация для диакритических знаков (тех странных маленьких символов, которые находятся над или под символами, которые вы видите во французском Zamaco.Доступны многие другие иностранные валюты. Этот генератор имен избавляет от необходимости продираться через списки. Следующая Страница. Whimsíque (произносится как whim-zeek) — это отмеченная наградами студия дизайнерских приглашений и канцелярских товаров, которая занимается созданием уникальных роскошных свадебных приглашений и канцелярских принадлежностей, которые обеспечивают эксклюзивное и аутентичное выражение вас, ваших отношений и вашего свадебного мероприятия. Кубинский генератор имен
66x lcf kar ruj pmh ksh 1tb shj 3p3 dup e4m so8 2ar hdm mak 1rl gwj upa 2ap 4zx
Дизайн спальни в хрущевке
Спальня в хрущевке не просторная и большая.Но в компактной обстановке можно создать уютный уголок для отдыха и релаксации. Дизайн спальни в хрущевке имеет определенные дизайнерские критерии, позволяющие максимально эффективно использовать счетчики.
Спальня в хрущевке обычно одна из самых маленьких комнат.
Дизайн спальни в хрущевке
Интерьер спальни в хрущевке зависит от особенностей архитектуры. Высота потолков, наличие и расположение окон, дверей.Используйте меньше мебели и заранее продумайте дизайн каждого угла.
Даже такую компактную комнату легко превратить в уютный и красивый уголок для сна ..
Как определиться с основным дизайном спальни в хрущевке?
В таких условиях сложно воплотить красивый и функциональный интерьер. Хрущевка отличается небольшой площадью и небогатой планировкой. Это создает проблемы, но их можно решить. В хрущевках высота стен обычно небольшая.Поэтому рекомендуется вводить оригинальные дизайнерские решения. Дизайн должен быть направлен на визуальное расширение площади, наполнение ее светом и пространством.
Грамотный выбор каждого предмета повысит функциональность помещения, не умаляя его красоты.
Декор для маленькой спальни
Он должен быть расслабляющим, красивым и практичным. Из-за отсутствия счетчиков необходимо размещать все необходимое на ограниченном пространстве.
Интерьер сложно продумать, но с учетом некоторых нюансов можно воплотить удачный дизайн.
Планировка маленькой спальни
Чтобы выбрать планировку, необходимо сначала определиться, что вы хотите видеть в этой комнате. Часто в набор вещей входит кровать, несколько тумб и шкафов, осветительные приборы. Набор считается классическим. Но если комната в квартире единственная, то она будет включать в себя рабочую зону со столом, полками и зону отдыха с мягким диваном, определенным уровнем освещения ..
Случаи, когда в однокомнатной хрущевке живет целая семья, вовсе не редкость.
Компоновка и размещение зависят от выбранных моделей. Важно максимально использовать доступные счетчики.
Правильное зонирование комнаты
На зонирование будет влиять назначение комнаты. Его можно совместить с гостиной, кабинетом или будуаром. В первом случае такой вариант сложно реализовать в малогабаритной среде. Замените кровать раскладной кушеткой, собирающейся днем.
Тогда можно будет принимать гостей.
Офис проще организовать. Рекомендуется отказаться от кровати в пользу компактного удобного дивана. Стол можно разместить в углу. Он эффективно использует свободное пространство на этой территории. В этой модели часто есть полочки, что избавит от необходимости устанавливать дополнительный шкаф. Компактный стол быстро складывается.
Если позволяет площадь, стоит построить стену из сквозных кубов. Она отделит одну зону от другой.
Будуарное соединение — наиболее гармоничный вариант.Предполагается, что есть сегмент для сна и зона, где женщина может разместить свою косметику, принести красоту. Кровать смотрится уместно. Не нужно снимать его, чтобы освободить место.
Используйте комод и зеркала, чтобы разделить на зоны.
Базовые стилевые решения
Дизайн для небольшого пространства предполагает максимальную функциональность. Поэтому рекомендуется рассматривать стили исходя из практичности ..
Небольшой метраж — не такая уж большая проблема для спальни.
Возможные варианты указаны в таблице.
| Стиль | Описание |
| Минимализм | Максимальная простота. Прямоугольные детали используются, в основном, из натуральных материалов. Палитра мягкая или сочетание черного и белого. Меньше предметов, больше места. |
| Высокие технологии | Строгость и ясность. Оттенки яркие, но не подавляющие. |
| Лофт | Сочетает грубые поверхности и богатые детали. |
| Fusion | Это смесь нескольких современных интерьеров. |
Перечисленные интерьеры предполагают использование минимум мебели, больше света, зеркальных поверхностей, что позволяет добавить пространства и воздуха. Палитру выбирайте преимущественно светлую. Визуально увеличивает комнату ..
Используйте темные тона для акцентов.
Для узкого помещения подойдут разные обои. Для длинных стен выбирайте холодные оттенки, противоположные поверхности покрывайте теплой гаммой.
Правильно подобранные обои — еще один способ зрительно расширить комнату ..
Отделка потолка и стен в маленькой спальне
Многое зависит от цветовой гаммы. Грамотный выбор сделает комнату уютной и просторной. Есть несколько вариантов отделки стен:
- Идеально сочетающиеся с обоями;
- Контрастная окраска;
- Отделка кирпичной кладкой;
- Зеркальные поверхности;
- Фотообои с изображением природы и других мотивов.
Выбор стиля для спальни — дело сугубо индивидуальное, ведь атмосфера этой комнаты должна нравиться ее обитателям ..
На выбор обоев влияет палитра штор и мебели. Они должны совпадать. Можно остановиться на пастельных тонах, которые выгодно подчеркнут предметы мебели и текстиль на окнах. Для визуального расширения стоит окрасить одну из стен или ее часть в контрастный тон ..
Выбор дизайна потолка намного уже.Лучшим решением будет выбрать белую или светлую палитру. Если использовать темный цвет, потолок станет массивным, визуально тяжелым, будет давить.
Легкая линейка воплощает в себе эффект невесомости.
Предпочтительный вариант — эластичная ткань с глянцевым покрытием. Он рассеет солнечные лучи и зрительно увеличит свободную площадь. Потолок можно отделать деревом, покрасить определенный участок.
Следует учитывать габариты хрущевки и не перегружать пространство яркими деталями, а также громоздкими элементами.
Спальни в хрущевке: подбор мебели и стилевое решение (+ много фото)
Даже небольшую комнату можно превратить в уютное и комфортное пространство. Важно выбрать такой дизайн, который настроит вас на расслабление и отдых. Выбранный дизайн должен понравиться хозяевам.
Важно заранее продумать каждую деталь ..
Откажитесь от сложных декоративных решений и заполните территорию огромным количеством мебели и предметов.Минимум крупных предметов. В противном случае пространство станет в несколько раз меньше. Мебель желательно светлых тонов. Хорошее сочетание получается при совмещении фактуры отделочных материалов и обоев.
Выбросьте гарнитуру вместе со шкафом. Он слишком большой и будет неуместно смотреться в маленькой комнате.
Идеальным вариантом будет шкаф-купе. Доступно множество моделей, в том числе угловые. Это помогает заполнить пустое пространство и делает каждую область полезной.Небольшую глубину изделия можно компенсировать высотой. Для дверей выбирайте зеркало в полный рост или матовое стекло.
Такая конструкция поможет зрительно увеличить пространство ..
Выберите кровать максимальной шириной 160 см. Предпочтительны модели с изголовьем. Отличным решением станет установка кровати-подиума. В нем много ящиков, в которых удобно хранить белье.
Обязательно поставьте большое зеркало. Для увеличения потолка выбирайте обои с горизонтальными полосами..
Если на дверцах шкафа есть зеркало, его можно дополнить несколькими картинами и фотографиями в рамах.
Цветовое решение для маленькой спальни
С помощью цвета можно правильно скорректировать внешний вид комнаты. Правильная палитра представляет комнату в выгодном свете, скрывая недостатки. В качестве основных выбирайте светлые оттенки, в основном холодные. Подойдут бежевые, голубые, персиковые, розовые тона.
Темная гамма, покрытия с ярким крупным рисунком способствуют визуальному сужению.Поэтому рекомендуется не учитывать их при проектировании. Обои должны иметь мелкий узор. Темный пол поможет создать контраст ..
Отличным выбором будет ламинат, паркет. Это позволит выгодно подчеркнуть общий вид ..
При использовании светлых тонов важно не переборщить. Белый цвет хорошо сочетается с мебелью и потоком. Но злоупотреблять этим не рекомендуется. Идеально подойдет глянцевое полотно натяжного потолка. Он зрительно расширит границы и позволит удобно разместить точечный свет.
Выбросьте плотные шторы. Ограниченное количество метров выгодно дополняет естественный свет. Комната становится свободнее, свежее. Плотная ткань не даст лучам проникать в комнату. Поэтому выбирайте легкие воздушные шторы. Можно ограничиться тюлем.
Чтобы соединить оконный проем и весь внешний вид, используемый текстиль должен иметь узор или вкрапления оттенков, используемых в спальне.
Средство для визуального увеличения пространства
Есть определенные приемы, позволяющие визуально расширить комнату.Воплотив их, можно сделать комнату просторнее. Рекомендуется использовать следующие инструменты.
Такой дизайн оставляет максимум свободного места и выглядит очень лаконично.
- Установка большой кровати. Даже если планируется разделение на зоны, назначение спальни останется прежним. Поэтому кровать должна быть удобной. Для экономии места и освобождения места рекомендуется ставить кровать рядом с одной из стен.
- Минимум товаров.Без шкафов и полок сложно обойтись. Однако скрытые модели следует перемешивать. Хорошо подойдет встроенный шкаф, позволяющий сэкономить квадратные метры ..
- Однообразие стен. Преимущественно светлые тона, придающие комнате прохладу. Не переборщите с белым оттенком. Иначе стены будут как в больнице ..
- Использование зеркал. Помимо стандартного размещения на стенах, его можно установить и на потолке. Поверхность будет успешно отражать солнечные лучи.Расположение будет зависеть от того, где находятся окна.
- Освещение. Должно быть обеспечено достаточное естественное и искусственное освещение. Грамотное размещение светильников сделает спальню просторнее.
- Двери раздвижные. Они позволят вам не занимать лишнее место при открытии;
- Выбросить ковры. Они визуально крадут площадь комнаты. Поэтому лучше выбирать теплый пол ..
Компактная мебель и отсутствие излишеств — главные черты минималистичного интерьера.
Дизайн маленькой спальни в хрущевке: правила и табу
Существует ряд правил, соблюдение которых позволит воплотить интерьер максимально выигрышно.
Классический дизайн интерьера подразумевает симметрию линий, сдержанную роскошь и изысканность всего окружения.
Следуйте рекомендациям.
- Светлая палитра подходит для потолка и стен.
- Исключить оранжевый, красный.Темные агрессивные тона не подойдут.
- Не рекомендуется делать подоконник широким.
- Выберите раздвижную дверь, как в гардеробы. Если это невозможно, дайте ему открыться наружу.
Так как комната небольшая, желательно использовать не более 2-3 цветов светлых или приглушенных оттенков.
Важно покупать компактные модели. Хорошо, если они совмещают несколько функций. Если рабочая зона организована, вы можете установить стол, который при необходимости можно будет собрать.Выбирайте кровать с местом для хранения вещей.
Квартиры имеют плохую звукоизоляцию, малую площадь, тесные хозяйственные помещения, низкие потолки. Особенно в них сэкономили на площади кухни, в некоторых вариантах она не больше 4,5 метров.


Для экономии закладка проема может быть выполнена материалом от слома стенки в кладовке.
Это можно сделать, разобрав кладовку или уменьшив коридор;







метра площади.
Внешние стены имеют толщину 35 см, сделаны из панелей, облицованных плиткой. Перекрытия железобетонные. Очень плохая виброизоляция. Общая площадь 44.6 м².
Если вы этого не сделаете, вас могут оштрафовать и заставить вернуть все в изначальный вид.
В результате вы обретете комфортную студийную квартиру. Данный вариант походит для одиночки либо семьи без детей.
Чтобы ее визуально увеличить, используйте дизайнерские приемы (о них ниже).
Оптимальный вариант – их обивка должна совпадать с тоном штор и стен.
Подобный подход оптимален, если комнаты проходные. Хочу вас предупредить, что при этом единая стилистика может подразумевать лишь общую идею. У вас останется свобода в подборе цветовой палитры, акцентов и тенденций оформления.


Осветительные приборы должны быть легкие и иметь простую форму: цилиндр, шар, усеченный конус, прямоугольник.
Они прибавят дизайну эмоциональности и экспрессии.
Снос всех домов серии 1-335 в Москве завершится, по оценке экспертов www.RussianRealty.ru, в 2015-2017 годах.
Дома доработок в Москве не строили
Все квартиры, кроме угловых, выходят в одну сторону.
М жилой площади для каркасно-панельных домов серии 1-335 составила 95 руб.в ценах 1961 года — самый низкий показатель за всю историю промышленного домостроения в СССР.
2 м / 12,0 м
Газовую трубу категорически нельзя передвигать самостоятельно.