Планировка трешки в панельном доме: Трешка в панельном доме планировка (19 фото)
Идеи для перепланировки трехкомнатной квартиры в панельном доме 1605-АМ
Как преобразовать типовую квартиру с проходной комнатой в качественное жилье и найти место для второй ванной комнаты
Перепланировки в домах этой серии — одни из самых опасных для здоровья. Дело в том, что проектом в квартире предусмотрены две вентиляционные шахты: одна в уборной, другая в стене между кухней примыкающей комнатой. И если к вентиляции в санузлах граждане относились с уважением, то выступ на пути в кухню многим «мешал жить». Конечно, ведь на его месте можно было спокойно поставить холодильник!
Ради этих самых холодильников была снесена не одна шахта вентиляции. Нарушенный воздухообмен не просто причинял неудобства соседям по стояку: он провоцировал появление грибка в стенах и перекрытиях дома. Сейчас идет процесс активного восстановления всех вентиляционных шахт и коробов, поскольку уже каждый осознал, что грибок и плесень, въевшиеся в стены, ослабляют имунитет проживающих: провоцируют респираторные заболевания у взрослых и аллергии-астмы у детей.
Именно поэтому важно не просто сделать перепланировку в доме серии 1605 АМ, а сделать ее без нарушения санитарных норм и угрозы здоровью.
Руслан Кирничанский
Панельные дома серии 1605-АМ строились с 70-х и по 90-е годы прошлого столетия.
Помимо истории с вентиляционными шахтами они примечательны тем, что в ряде домов этой серии были применены экспериментальные панели с размещением обогревающих элементов внутри наружных стен. Эксперимент был признан неудачным, поскольку теплопотери были значительны. Сейчас при проведении ремонтных работ в экспериментальных домах серии 1605 разрешается изменение системы отопления с установкой радиатора «по-старинке» — под оконный блок.
Руслан Кирничанский
Техническое особенности квартиры
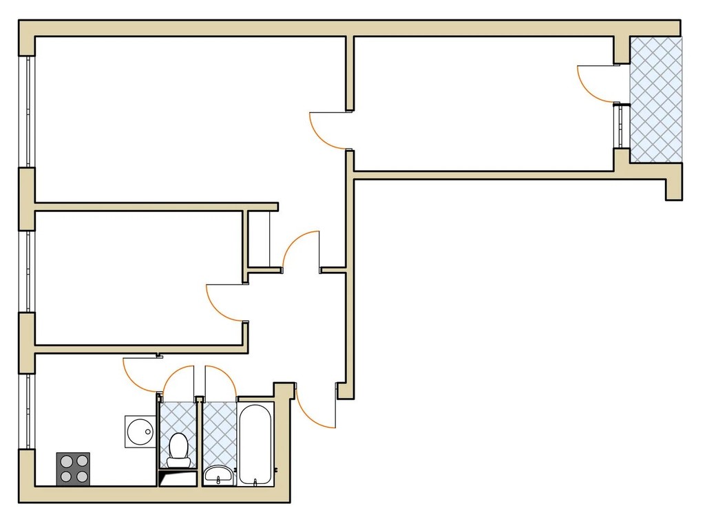
Рассмотрим возможности перепланировки в доме серии 1605 АМ на примере трехкомнатной квартиры. Помимо кухни, ванной комнаты, уборной, коридора и лоджии в квартире три жилые комнаты, причем одна из них проходная.
Площадь квартиры 64 кв.м, из них жилая составляет 46 кв.м.
Важно: Практически все стены в квартире несут нагрузку перекрытий и сносу не подлежат. Но в стенах можно организовать проем, предварительно укрепив их.
Руслан Кирничанский
Вариант 1. Минимум ремонта
В этом варианте площадь ванной и уборной увеличивается за счет коридора, что допустимо. Обратите внимание на туалетную комнату: в силу сложной конфигурации стены между уборной и ванной (она, кстати, остается изолированной) удается установить компактную раковину.
I.D.interior design
Все комнаты становятся изолированными, а в отрезанном «торце» коридора и некогда проходной комнаты появляется небольшая гардеробная.
Коридор в кухню сужается — его ширина составляет 900 мм: дело в том, что на глубину вентиляционного короба вдоль всей стены по соседству с ним встроен шкаф.
Гостиная организована в ближайшей комнате к кухне, что помогает сохранить спальни в «уединении».
Keir Townsend
Для кухни предложена угловая планировка: это позволит разместить и духовой шкаф, и посудомоечную машину. Кроме того угловая столешница увеличивает площадь для приготовления еды.
Совет: В маленькой кухне постарайтесь организовать удобную зону для приготовления еды. Если площадь позволяет применить схему расстановки кухонного оборудования буквой «П», то это идеальный вариант. Главное, чтобы «проход» был не уже 1500 мм.
Руслан Кирничанский
Вариант 2. Квартира с двумя санузлами для семьи с двумя детьми
Организуются отдельные спальни для родителей и детей. Между спальней родителей и детской — «буферная» зона гардеробной: она же является дополнительной звукоизоляцией.
Обособленные санузлы добавляют еще больше комфорта при проживании: вторая уборная с раковиной позволит избежать бытовых конфликтов.
К детской комнате примыкает лоджия, которую мы добавляем к площади квартиры. Добавление лоджии к комнате в этом доме разрешено, допустимо также демонтировать нижний оконный блок для организации прохода.
Совет: При выборе дизайна для детской постарайтесь отойти от стереотипа «солнышко, облака и смешные животные». Ребенок — полноценная личность, которая имеет право на свои вкусовые предпочтения. Идеально, когда интерьер детской сдержан и не перегружен деталями. «Солнышко и животные» могут появиться, но лучше, если это будут постеры или игрушки.
Не бойтесь использовать для оформления детской белый цвет: маркость белых стен приучит ребенка к порядку и чистоте быстрее и лучше, чем строгая няня.
Однушечка | Odnushechka
В результате такой перепланировки квартире организован комфортный уровень проживания: кухня-гостиная становится смысловым центром квартиры, где собирается вся семья и принимают гостей.
Дома этой серии не газифицированы, что позволяет объединить кухню с жилой комнатой. А за счет объединения расширяется площадь для кухонного оборудования: можно установить обеденный стол на 6 персон и создать уютный уголок возле дивана и круглого пуфа.
Важно: Экспериментальные серии этих домов отличаются размещением водяных коммуникаций: в некоторых домах в стене между кухней и комнатой проходят трубы, что ограничивает допустимую ширину организации проема.
Руслан Кирничанский
Вариант 3. Максимум комфорта
Квартира имеет четкое деление на приватную и гостевую части, при этом в гостевой расположена кухня-гостиная и гигантская ванная комната. В приватной части — две автономные спальни, гардеробная и ванная с душем.
За счет сокращения длины коридора и перепланировки комнаты, примыкающей к кухне, со стороны прихожей удается организовать скрытые шкафы для хранения обуви и верхней одежды. Они же служат границей второй, приватной ванной комнаты в тамбуре между спальнями.
Расположение гардеробной не отличается от предыдущего решения — она расположена в буферной зоне между родительской и детской комнатами.
Alair Homes Plano
Важно: Вторая ванная комната размещена в пределах коридора и не занимает жилую площадь: при соблюдении этого условия на подобное переустройство квартиры можно получить разрешение.
Для реализации подобного решения традиционным способом пришлось бы организовать необходимый уклон (4 градуса) для трубы канализации. Несложно подсчитать, что значительная отдаленность магистрали канализации от второй ванной комнаты потребовала бы поднятия уровня пола на полметра.
Действуйте проще: установите специальный насос, который будет автоматически очищать трубу канализации. В этом случае в подъеме нет необходимости.
Совет: Произведите полную гидроизоляцию квартиры — это важное условие подобной реконструкции.
Бюро Александры Федоровой
Достоинства предложенного планировочного решения в том, что получается использовать все скрытые резервы площади и не нарушить строительный регламент.
В квартире достаточно мест для сна, работы и отдыха, как и мест для хранения.
Кроме того подобная планировка идеальна, если вы любите принимать друзей: ваш гость может жить в квартире, не создавая неудобств, так как приватная часть изолирована.
КАК ВЫ ДУМАЕТЕ…
Если бы подобная статья вышла в свет в 1970 году, еще до моего рождения, то сейчас было бы меньше детей, страдающих алергиями и астмой? Соизмеримо ли здоровье с «лишними метрами»? Готовы ли вы пожертвовать вентиляционной шахтой в квартире ради удобной планировки? Поделитесь своим мнением в разделе комментариев.
Спонсируемые
Unkonventionelle Wohnlösungen auf hohem Niveau im Rheinland
Перепланировка трехкомнатной квартиры в панельном доме серии 1605-АМ
Автор этого проекта предложила простое решение, как, кардинально не меняя планировку, визуально преобразить стандартное типовое жилье?
- 1 из 1
На фото:
Кто сказал, что интерьер обязательно нужно засыпать яркими акцентами! Хватит и пары элементов, штор и ковра радостной расцветки.
Сведения о квартире: 3-комнатная квартира площадью 63,9 кв. м на 3-м этаже панельного 12-этажного дома серии 1605-АМ.
Владельцы квартиры: семейная пара с дочерью.
Пожелания клиентов: обыграть недостатки внутренней архитектуры квартиры и оживить интерьер элементами стиля прованс.
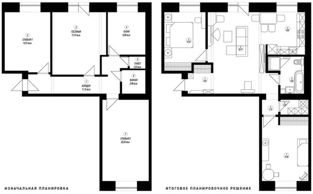
Перепланировка трехкомнатной квартиры в панельном доме: план жилого пространства после внесенных изменений.
Данная квартира подверглась минимальным изменениям. Перепланировка трехкомнатной квартиры в панельном доме коснулась в основном только лоджии — она была присоединена к жилому пространству. Помимо этого была выстроена отдельная гардеробная комната и визуально облагорожено самое слабое место квартир стандартной планировки — длинный узкий коридор. Чтобы избежать визуальной «тесноты» было решено отказаться от дверей, разделяющих прихожую и гостевую зону. Маленькое пространство входной зоны не позволяло обустроить в ней необходимые системы хранения, поэтому встроенные шкафы появились в гостиной и рядом с кухней, что очень удобно с точки зрения эргономики пространства.
Мягкий классический интерьер с элементами Прованса делает квартиру уютной и по-домашнему теплой.
В прихожей присутствует всего один предмет мебели — отдельно стоящая вешалка на гнутых ножках. Ее дополняет зеркало в изящной раме. И этого вполне хватает, чтобы привнести в интерьер прихожей и функциональность, и благородство.
Системы хранения (крупногабаритные шкафы) одновременно являются и своеобразными перегородками.
Объединяющим элементом коридора и гостиной стали картины с изображениями различных пейзажей.
В кухне размером 6,7 кв. м помимо традиционной кухонной мебели необходимо было встроить еще и бытовую технику. Дизайнеру пришлось задействовать каждый сантиметр площади.
Мойка у окна — как это по-провански! Столешница органично перетекает в подоконник, что значительно увеличивает рабочую зону, делая ее комфортной и позволяя разместить всю необходимую технику.
Автору проекта удалось даже выкроить место для обеденного уголка в крошечной кухне.
Родительскую спальню объединили с лоджией, благодаря этому в комнату поступает больше света, и она смотрится более просторной. Зона отдыха у окна позволяет уединиться и почитать книгу.
Пара шкафов окрашены в разные цвета — это помогает избежать визуальной громоздкости.
Плавный абрис мягкого изголовья кровати прекрасно сочетается с резным туалетным столиком.
Пространство присоединенного балкона в спальне дочери стало прибежищем для уединенного уголка отдыха, которое обрамляют цветастые шторы.
Планировка интерьера, Панельные дома, Трехкомнатные квартиры, Стиль прованс, Стиль, Квартиры, Интерьер, Описания проектов, 3D, Живолупова Татьяна
- Комментировать в FB
- Комментировать в VK
House Design & Layout — Simtek Modular
Перейти к содержимомуДом Дизайн и LayOutolin2020-01-08T14: 25: 15-07: 00
Профессионально разработано для опыта обучения в реальном мире
Панель и спецификации в скобке-
8 rall x 2,5 QUAL.
толстые x варианты ширины 4 фута, 3 фута, 2 фута или 1 фута. -
Варианты конструкции из фанеры, предназначенные для использования вне помещений, обработанные под давлением, окрашенные латексной краской (для легкой очистки).
-
Прочные стальные кронштейны предлагают пять вариантов конфигурации по каждому краю.
-
95 фунтов за полноразмерную панель.
-
Легкие панели прочны, но не структурны.
-
Подходит для большинства откидывающихся и выдвигающихся мишеней.
СОЕДИНИТЕЛЬНЫЕ КРОНШТЕЙНЫ – Почему SIMTEK Modular лучше!
Изготовлен из прочной стали 12 калибра. Порошковая покраска любого цвета на ваш выбор (по умолчанию черный). Кронштейны на 100% изготовлены в США.
Распорные стойки для каждой панели позволяют создать любую конфигурацию помещения без ущерба для размеров.
Также добавляет стабильности общей конструкции. (2) кронштейны и (1) стойка составляют соединительный комплект.
Панель и кронштейны образуют прочную, настраиваемую тренировочную систему, рассчитанную на долгие годы использования.
Straight TEE Угловой Cross КОНЕЦ КОРОТКАЯ СТЕНА Построй мой дом для стрельбы!3 Настраиваемые стили панели
Параметры накладного покрытия:
CDX , ABX , Обработанные давлением (зеленый), Огненные, меламина и композитный .
ВАРИАНТЫ ПОКРАСКИ: При желании мы покрасим их в 2 слоя: грунтовку и высококачественный внешний латекс, который легко стирается для повторного использования маркера или пейнтбола.
Цвет выбирает заказчик.
Сплошная панель — это именно то, на что она похожа — сплошная стена, расширяющая вашу конфигурацию в любом нужном направлении. Панели могут быть разобраны и сложены для компактного хранения.
ОКОННАЯ ПАНЕЛЬОконные панели имеют прорезь шириной 3 фута и высотой 4 фута на расстоянии 6 дюймов от верхней, правой и левой сторон панели. Поставляется с пустой или опциональной панелью из плексигласа, что обеспечивает безопасное наблюдение и планирование.
ДВЕРНАЯ ПАНЕЛЬДверная панель имеет вырез, готовый к установке любой стандартной 30-дюймовой двери, поставляемой Simtek Modular или которую вы можете приобрести в местном хозяйственном магазине и установить самостоятельно.
SOLID PANEL Цельная панель — это именно то, на что она похожа — сплошная стена, расширяющая вашу конфигурацию в любом желаемом направлении.
Панели могут быть разобраны и сложены для компактного хранения.
Оконные панели имеют прорезь шириной 3 фута и высотой 4 фута на расстоянии 6 дюймов от верхней, правой и левой сторон панели. Поставляется с пустой или опциональной панелью из плексигласа, что обеспечивает безопасное наблюдение и планирование.
ДВЕРНАЯ ПАНЕЛЬДверная панель включает в себя вырез, готовый к установке любой стандартной 30-дюймовой двери, поставляемой Simtek Modular или которую вы можете приобрести в местном хозяйственном магазине и установить самостоятельно.
Простота штабелирования и хранения
Удобные, высококачественные и доступные модульные конструкции
Модульные панели для стрельбы легкие, легко устанавливаются двумя или тремя людьми , их удобно штабелировать и хранить. Комнаты, коридоры и отдельно стоящие стены (по крайней мере, с одним углом через каждые 20 футов или 5 панелей) можно собрать и разобрать за считанные минуты для использования даже в течение одного дня с минимальными затратами времени и усилий.
СВЯЖИТЕСЬ С НАШЕЙ КОМАНДОЙ!
Simtek Modular предлагает самые качественные, удобные и доступные на сегодняшний день модульные модели для небаллистических тренировок.
Свяжитесь с нами и давайте обсудим ваш проект!
Ссылка для загрузки страницыПерейти к началу
Строительство панельных домов. Процесс
Текущая незавершенная работа.
Строительство бунгало с 2 спальнями с использованием армированных сборных панелей. Картинки ниже. День 1 – 10. Строительство панельного дома для прочного прочного дома
Позвоните нам, чтобы договориться о посещении строящегося дома и увидеть строящийся дом.
Панельные дома становятся разумным выбором для успешного строительства благодаря своей экономичности. Стоимость строительства панельного дома ниже, чем каменного дома.
Ожидается, что время строительства сократится на 50 %, а затраты снизятся примерно на 20–30 %, частично за счет использования меньшего количества рабочей силы, отсутствия хищения материалов, отсутствия решения различных вопросов, возникающих при закупке строительных материалов и их транспортировка, меньше отходов материалов и быстрое время строительства.
Панельный дом — это дом, который построен с использованием заводских сборных железобетонных панелей для формирования экстерьера и поддержки конструкции, а также для обеспечения оболочки, на которой построена внутренняя планировка дома.
Панельные дома становятся разумным выбором для успешного строительства благодаря своей экономичности. Стоимость строительства панельного дома ниже, чем каменного дома.
Сборное строительство быстрое, экономичное и прочное. В то время как он стал популярным для больших зданий с простой планировкой (многоэтажные здания), новые методы расширили рынок для повышения гибкости дизайна, что делает его подходящим для жилых домов с более сложной планировкой.
Дополнительные преимущества
· Использование сталежелезобетонных панелей обеспечивает надежную и долговечную жилую среду. Вы можете быть спокойны, зная, что находитесь в безопасном и надежном доме.
· Панельные дома из сборного железобетона также могут быть построены в соответствии с вашими требованиями.
· Сокращает строительные отходы, а отделка всегда высочайшего качества.
· Эта технология экономит ваши деньги и обеспечивает оптимальную отделку.
· Эта технология полностью совместима со всеми другими существующими строительными системами. Подходит для комплектации с железобетонными или стальными конструкциями. Кроме того, он совместим с деревянными крышами, черепицей, любыми кровельными материалами, кирпичными и плитными полами.
· Эти панели создают комфортное жилое пространство и снижают затраты на строительство.
· Вы можете оформить свой дом с любым дизайном интерьера, доступным на рынке.
· Легко адаптируется ко всем типам дверей и окон.
· Наши бетонные панели прочны и долговечны, независимо от того, предназначены ли они для жилых домов, коммерческих зданий, квартир, школ или гостиниц, а также складов/магазинов.
Эта технология экономит ваши деньги во многих отношениях.
Меньше времени на объекте, отсутствие работы с фондами, перевозчиками и т. д.
Путешествие к дому начинается
Процесс
У вас есть архитектурный чертеж вашего дома? Назначьте встречу с нашим архитектором и обсудите план вашего дома или квартиры.
На встрече у вас будет общее представление о том, чего вы хотите. Эскиз покажет нам, сколько это будет стоить вам.
Мы представляем договор на строительство, который в основном является меморандумом о соглашении и положениями и условиями для общих требований к строительству и дизайну.
Оплата производится по безналичному расчету в соответствии с этапами, указанными в договоре в отношении выполненных работ.
Наше обязательство
Мы обязуемся устранить любые материальные или скрытые дефекты, возникшие в результате некачественного изготовления и возникшие в течение 9 дней.0 дней с даты завершения.
НАША ПРОЦЕДУРА
1.
2. Отправьте свои подробные планы на рассмотрение, модерацию и подготовку ведомости объемов работ компанией Ankar Homes
3. Получите пересмотренные и подписанные архитектурные планы и ведомость объемов работ.
4. Организация финансирования стоимости строительства дома/проекта
5. Подпишите контракт на строительство ANKAR HOMES.
6. Оплатить стоимость строительства в соответствии с согласованными ценовыми ведомостями объемов работ.
7. ANKAR Homes строит дом вашей мечты в соответствии с договором на строительство.
Следующие спецификации относятся к нашим домам:
1. Фундамент и пол:
Железобетонная плита толщиной 100 мм с сеткой A142BRC на 500-миллиметровом жестком основании с песчаным ослеплением и 500-граммовой полиэтиленовой обработкой DPM с антитермитной обработкой.
2. Стены:
Железобетонные панели.
3. Окна:
Стандартные створчатые решетки
4. Полы:
Цементная стяжка пола. Отделка пола может быть из любого другого материала по выбору клиента за дополнительную плату.
5. Внутренние и внешние двери:
Внешние двери изготовлены из стали с решетчатым окном. Внутренние двери представляют собой стандартные плоские двери.
6. Электромонтаж:
Клиент поставит в дом все подключения к сети от Kenya Power. Электропроводка будет проведена до счетчика.
7. Сантехника:
Сантехника будет проведена до первого люка максимум в 1 метре от дома. Подключение к канализации и септики не включены в стоимость дома. Подключение к водопроводу за счет заказчика.
8. Кровля:
Стандартная крыша будет сделана из цветных кровельных листов MRM Mabati калибра 28. Другие стили и материалы кровли могут быть определены заказчиком.
Стоимость будет варьироваться от одного выбора к другому. Водосточные желоба и водосточные трубы в комплект не входят.
9. Отделка:
Потолок будет из потолочных досок 10 мм с брендингом. Покраска всех внутренних и внешних стен. Клиент может предоставить выбор цвета.
Дополнительные работы
В случае, если местный орган власти или ВЛАДЕЛЕЦ или любой другой орган или сторона в любое время по любой причине, будь то до, во время или после строительства дома требует каких-либо изменений, изменений или дополнений к зданию планы и/или спецификации, связанные с любыми дополнительными расходами СТРОИТЕЛЯ, тогда стоимость соблюдения изменений, изменений или поправок несет и оплачивает ВЛАДЕЛЕЦ.
Если СТРОИТЕЛЬ несет дополнительные работы или расходы в связи с вышеизложенным или из-за состояния почвы или участка, обнаруженного после начала строительства, дополнительные расходы, возникающие в связи с такими работами или расходами, также должны быть оплачены ВЛАДЕЛЬЦЕМ.
Другие требования ANKAR HOMES:
1. Убедитесь, что ваш участок огорожен или на нем есть надлежащая охрана.
2. Обеспечьте наличие инженерных коммуникаций, таких как вода / электричество / канализация.
3. Убедитесь, что земля ровная и твердая.
Лицензионные требования округа для утверждения строительных чертежей;
- Текущая Заверенная копия свидетельства о праве собственности Министерства земель (3 месяца или менее)
- Квитанция о соответствующих тарифах за текущий год
- Копия ранее утвержденных планов (при реконструкции существующего здания)
Клиент Ответственность за утверждение планов строительства
Вы будете нести ответственность за следующее;
- Физическая доставка вышеуказанных чертежей/документов в утверждающий орган.
- Оплата ВСЕХ соответствующих сборов округа за утверждение.

толстые x варианты ширины 4 фута, 3 фута, 2 фута или 1 фута.