Планировка студии 28 кв м: Дизайн студии 28 кв. м
Дизайн студии 28 кв. м
Квартиры-студии пользуются большой популярностью среди молодых и людей преклонного возраста. Такое жилье является комфортным для проживания, привлекает открытой планировкой и современным дизайном. Не каждому доступно приобрести просторное помещение, но вполне возможно превратить малогабаритную квартиру в модную студию. Правильно разработать дизайн и убранство студии 28 кв м не так уж и сложно. К тому же это весьма увлекательный и интересный процесс. Попробуем рассмотреть ключевые моменты создания комфортного, современного, малогабаритного жилища, ознакомиться с полезными рекомендациями и возможными нюансами, которые стоит учесть при проектировании будущей квартиры студии площадью 28 кв м.
Особенности квартиры-студии
Такую квартиру, уже с готовой планировкой, можно приобрести непосредственно у застройщика. Другим вариантом будет переоборудовать однокомнатную в современную студию. Здесь необходимо учесть, что делая перепланировку самостоятельно можно столкнуться с некоторыми трудностями.
Придется добиваться разрешения в соответствующих инстанциях. Ведь нужно будет сносить стены, а можно убирать только не несущие простенки. В квартире студии, в большинстве случаев, стены предусматриваются только для санузла и ванной комнаты, остальное пространство остается открытым. Поэтому необходимо тщательно обдумать, что является более важным, современное просторное жилье или возможность уединиться в отдельной комнате. Семьям, в которых проживают двое и больше детей лучше отказаться от такого типа жилья в пользу обычных квартир с несколькими комнатами.
Жилые помещения с метражом 28 кв. м. могут быть прямоугольными, квадратными, в виде тоннеля. Если вы только собираетесь приобрести такое жилье, то рекомендуется остановить свой выбор на квартире в форме квадрата.
Разработка дизайн-проекта
При разработке проекта, согласовывать с местными властями, нужно только снос стен, замену проводки и труб, если это потребуется.
При планировке, в первую очередь, важно выделить участки для кухни, столовой, сна, работы.
Распределяя на схеме функциональные зоны удобно руководствоваться принципом кухня-гостиная-спальня. Остальное пространство можно использовать на свое усмотрение. Необходимо будет составить план будущей студии, продумать размещение функциональных зон, расстановку мебели, систему хранения вещей. Каждую деталь желательно учесть еще на этапе планирования. Важно, чтобы квартира-студия была просторной и хорошо освещалась. Если в помещении есть только одно окно, тогда необходимо добавить больше источников искусственного освещения по периметру потолка. Когда в студии есть два окна, дополнительного дневного освещения не потребуется, помещение будет достаточно светлым.
Большим преимуществом в квартире-студии является наличие балкона. Его можно превратить в гардеробную, лаунж-зону или в рабочий кабинет. Это позволит сэкономить дополнительные метры и создать необходимую функциональную зону. Заранее необходимо позаботиться об утеплении лоджии.
Грамотная планировка квартиры студии
Важно продумывать проект будущей студии с учетом индивидуальных потребностей жильцов.
Ведь для девушки может быть желательнее иметь вместительную гардеробную, а для мужчины важнее окажется рабочая зона, место для проведения досуга и встреч с гостями. Для семейной пары с ребенком будущее жилье планируется так, чтобы у каждого члена семьи было свое личное пространство. Идей для планировки квартиры-студии 28 кв. м. большое множество. Для их реализации можно обратиться к профессиональным архитекторам и дизайнерам интерьеров или попробовать воплотить свои идеи самостоятельно.
В оформлении квартиры-студии нужно придерживаться одного дизайнерского стиля, например минимализм, лофт, скандинавский, классический и так далее. Зонирование пространства осуществляется при помощи различных приемов. Функциональные зоны можно разделить используя декоративные элементы, предметы мебели, многоуровневые конструкции потолка, различные половые покрытия, условные перегородки.
В студии где проживает ребенок лучше приобретать многофункциональную, комплексную мебель, двухъярусные конструкции.
Например кровати со встроенными ящиками, полками для хранения вещей или спальное место соединенное с шкафом или письменным столом. Зонировать личное детское пространство можно при помощи ширм, занавесок, раздвижных перегородок. Иногда для разделения пространства служат предметы мебели, открытые стеллажи, небольшие шкафы и другие. Для подростка можно оборудовать спальное место на втором ярусе, под которым будет располагаться рабочая зона.
Прихожая
Прихожую в квартире-студии отделяют декоративными перегородками или другим напольным покрытием. В этой зоне должно быть минимум аксессуаров. Это могут быть крючки, обувные полки, большое настенное зеркало. Также в прихожей необходимо позаботиться об отдельном освещении. Встроенный шкаф-купе или ниша с зеркальными, раздвижными дверцами обеспечит место для хранения вещей и будет одновременно выполнять функцию зеркала. Установив угловой шкаф можно значительно сэкономить площадь помещения. В малогабаритных хрущевках, в прихожих часто встречаются кладовые, которые служат местом для хранения вещей.
Если в кладовку установить раздвижные двери, получится вместительный шкаф-купе, который не займет много пространства.
В маленьких прихожих не рекомендуется устанавливать системы хранения вещей открытого типа, чтобы избежать загромождения территории.
Кухня и обеденная зона
В рабочей кухонной зоне устанавливается функциональный гарнитур или встроенная мебель с бытовой техникой. В малогабаритном помещении рациональнее иметь минимальное количество оборудования, только самое необходимое. Если на кухне расширить подоконник и под ним разместить полки, выдвижные ящики, таким образом можно создать дополнительное место для бытовой техники, хранения посуды или других необходимых вещей.
Рабочую зону от обеденной можно отделить барной стойкой. Это создаст дополнительные места для гостей и домочадцев. Также зоны отделяются декоративными перегородками, различным половым покрытием. Например на кухне кафель, в столовой ламинат. Чтобы стыки отличимых напольных покрытий выглядели эстетично, используются специальные накладки.
Гостиная
В зоне отдыха можно установить диван-трансформер или раскладную кровать, такая мебель обеспечит дополнительное спальное место. В некоторых случаях диван одновременно служит своеобразной перегородкой. Для экономии территории, телевизор лучше повесить на стену. В гостиной зоне, для разделения пространства, устанавливаются многоуровневые потолки, на пол стелется мягкий ковер.
Спальное место
Желательно расположить спальную зону подальше от кухни и санузла. Место для сна можно выделить подиумом, под которым разместится дополнительное место для хранения вещей. Иногда, в маленьких помещениях устанавливается кровать вмонтированная в шкаф, которая раскладывается только на время сна или отдыха. Если высота помещения позволяет, то спальное место организовывается сверху, на втором ярусе. Под ним останется дополнительный участок, к примеру для рабочего места или отдыха.
Спальная зона отделяется при помощи различных вариантов:
- декоративные перегородки;
- сквозные стеллажи;
- ширмы, текстильные занавески, балдахин.

Рабочее место
Рабочая зона, чаще всего, организовывается в гостиной или спальной. Для этого можно использовать раскладную, выдвижную мебель. Главное, чтобы место для работы, учебы хорошо освещалось. Для организации рабочего пространства иногда расширяют подоконник, который послужит своеобразным столом. Такой участок для работы или учебы будет прекрасно освещаться солнечным светом в дневное время суток. Если нет возможности использовать место под окном, лучшим решением будет приобрести компактную, трансформирующуюся мебель.
Ванная
Ванная комната и санузел должны быть изолированными от остального пространства квартиры-студии. То есть, стены, двери, в этом случае, остаются на своих местах. Раздвижные двери, в отличие от распашных, позволят сэкономить дополнительное пространство. Угловая сантехника и мебель займут меньше места в маленьких комнатах. Если ванная и санузел раздельны, их можно совместить. Если перенести унитаз в ванную, то освободится дополнительный метраж для остального пространства студии.
В небольших квартирах-студиях чаще устанавливаются душевые кабинки вместо ванн.
Цветовые решения
В интерьере небольшой квартиры должны преобладать светлые, пастельные оттенки с яркими, насыщенными акцентными пятнами. Глянцевые поверхности облицовочных материалов и зеркала визуально расширят пространство. Белый цвет часто используется как основной потому, что он удачно комбинируется с любыми другими оттенками. Преобладающая белоснежная гамма придает помещению презентабельности и расширяет простор. Цветовое решение определяется исходя из выбранного стилистического направления.
Особенности освещения небольшого пространства
При создании современного дизайна квартиры-студии, центральную, гостиную зону необходимо осветить как можно лучше. В остальных участках используется освещение рассеянного типа. В небольшой квартире не рекомендуется устанавливать массивные, объемные люстры. Вместо этого лучше использовать несколько плоских, маленьких светильников.
Так помещение станет восприниматься как более просторное. Каждая функциональная зона должна освещаться отдельными источниками искусственного света. К примеру в рабочей зоне устанавливается настольная лампа или настенный светильник, в спальне бра, ночник. В квартире-студии должно быть многоуровневое освещение.
Заключение
В завершении стоит отметить все плюсы и минусы квартир-студий. Это поможет точнее определиться с выбором будущего жилища.
Преимущества:
- Есть возможность получить просторные, светлые апартаменты при скромных размерах квартиры.
- Можно свободно менять планировку исходя из своих желаний и потребностей.
- В любой момент легко меняется расположение функциональных зон, если это потребуется.
- Для оформления интерьера подходит множество различных дизайнерских стилей.
Недостатки:
- Отсутствие капитальных перегородок приводит к шуму доносящемуся из соседней функциональной зоны и к распространению запахов из кухни.

- Перепланировку жилья необходимо согласовывать с соответствующими контролирующими органами.
- Студия не подходит для проживания в ней многодетным семьям.
Тем не менее, популярность современных квартир-студий растет с каждым днем.
Дизайн студии 28 кв. м (47 фото): интерьер и планировка
Дизайн студии площадью 28 кв. м
Преимущества и недостатки
Квартиры-студии в наше время пользуются устойчивой популярностью у молодых людей, пенсионеров и семейных пар. Небольшая площадь, всего 20 – 30 квадратных метров, в совокупности с продуманным дизайном делают проживание в таком жилье достаточно комфортным и относительно недорогим.
Модную студию с готовой планировкой сегодня можно приобрести непосредственно у застройщика. В некоторых сдающихся крупных жилых комплексах доля студий составляет до 30 %.
Можно приобрести и переоборудовать в студию небольшую квартиру старого жилого фонда, например, классическую однокомнатную квартиру общей площадью 28 кв. метров. Перепланировкой стоит заняться при наличии нескольких предпосылок:
- в тесную квартиру не вписываются современная мебель и бытовая техника;
- в квартире живут не более двух человек, готовых оплатить услуги дизайнера и преодолеть масштабную реконструкцию;
- желание жить в просторном жилье перевешивает желание уединиться;
- привычка пользоваться самыми необходимыми вещами, отсутствие склонности к хранению ненужного хлама.
Главное преимущество студии в том, что в результате перепланировки образуется одно просторное пропорциональное помещение. Стенами будет огорожен только санузел, совмещенный с ванной, а остальные перегородки будут снесены.
Помещение будет освещено лучше, поскольку квартира превратится в естественно освещенное пространство с двумя окнами без узких и темных коридоров.
Планировка студии дает простор фантазии дизайнера. Стремление размещению функциональных предметов, которые в старой квартире никогда бы не поместились, может привести к созданию и реализации идей уникального дизайнерского проекта.
Квартиру можно разделить на виртуальные зоны, применяя современные отделочные материалы. При этом сохранить изначальную функциональность каждого помещения, вошедшего в состав студии. Между зонами приготовления, приема пищи и зоной отдыха в квартире-студии передвигаться перемещаться будет гораздо свободнее.
Прежде чем заняться обустройством, важно понять и негативные стороны такого жилища. Главный минус состоит в том, что самого комфортного уровня проживания может достичь только один человек. Если все же в квартире проживают два человека, у них должен быть максимально совпадающий ритм, чередующий время работы со временем отдыха.
Поэтому молодой семье, в которой планируется появление ребенка, следует задуматься о переезде из студии в более подходящую квартиру, где можно будет выделить отдельную детскую комнату.
Концепция квартиры-студии не предполагает размещения слишком громоздкой монофункциональной мебели, например, огромной двуспальной кровати, которая займет все помещение гостиной. Ко всему прочему, ремонт и оснащение такой квартиры потребует больше материальных затрат, чем обычный косметический ремонт.
Что нужно знать при перепланировке
Нужно понимать, что далеко не всякую квартиру можно превратить в студию. После разработки проекта реконструкции, придется пройти немало согласующих инстанций для его утверждения. Далеко не во всех случаях проект будет утвержден.
Разрешается сносить только ненесущие стены. Снос несущих стен может привести к разрушению всего дома. Определить, какие стены в квартире являются несущими или ненесущими может только специалист. Возведение перегородок, например, с целью выгораживания гардеробной зоны также может иметь ограничения, поскольку, они добавляют дополнительные нагрузки на перекрытия.
Перенос электрифицированной кухни и ванной с санузлом возможен будет в пространство, расположенное над нежилым помещением соседей снизу, например, в коридор. При переносе нужно обязательно продумать возможные изменения систем водоснабжения, отопления и вентиляции, а также не забыть об устройстве гидроизоляции пола.
Дизайн
Хороший проект перепланировки и грамотное зонирование должны быть разработаны так, чтобы уместить в студии прихожую, санузел, кухню, зону отдыха и подсобное помещение.
Планируя организацию студии 28 квадратных метров любой конфигурации, с целью добавления простора и комфорта следует руководствоваться следующим:
- можно уменьшить площадь ванной, совместив ее с туалетом, так как лучше сэкономить полезное пространство в пользу увеличения кухни;
- установив вместо ванны современную душевую кабину, можно уменьшить площадь санитарной зоны;
- в декоре квартиры можно разместить на стенах друг против друга зеркала или сочетать зеркальные и матовые поверхности;
- в отделке квартиры в целом, а также ванной использовать светлые спокойные оттенки и белый цвет, добавляя яркие акцентирующие внимание детали;
- не забыв утеплить балконную зону, совместить с ней кухонное пространство, при этом допустимо использование подоконного блока в качестве обеденного стола или модной барной стойки;
- обставить пространство мебелью надо рационально, обозначив зону отдыха подальше от входа и оставив свободную зону;
- стационарные перегородки уместны в вытянутом помещении, в остальных случаях лучше зонирование цветами и фактурами отделочных материалов или мобильными перегородками.
Прямоугольная узкая и длинная планировка квартиры требует особых приемов в организации внутреннего пространства. Отличным вариантом для студии 28 кв. м, с шириной, не превышающей трех метров, и расположением двери и окна на узких стенах напротив друг друга может быть зонирование четырехсекционной раздвижной перегородкой. Такая перегородка в интерьере маленькой квартиры между кухонной зоной и зоной отдыха, может быть из прозрачного стекла. Сегодня дизайнеры предлагают необычный способ зонирования с помощью перегородки, одна из сторон которой будет матовой, а другая зеркальной.
Аккуратность и уютный внешний вид студии Г-образной планировки придадут вместительные встроенные шкафы и встроенная бытовая техника, полностью разгружающие интерьер. Подходящим решением для небольшой узкой гостиной может стать отказ от массивной мебели в пользу встроенных откидных конструкций: кровати в зоне отдыха и столешницы в обеденной зоне. Отделка пола светлыми сосновыми досками и белая поверхность оштукатуренных стен и мебели визуально сделают помещение намного светлее и просторнее.
Интересным вариантом станет студия прямоугольной формы, спроектированная из однокомнатной квартиры с балконом или лоджией. За счет присоединения лоджии с качественным остеклением общая площадь помещения увеличивается на несколько квадратных метров, зона гостиной приобретает дополнительное естественное освещение. Лоджия в такой квартире используется как зона отдыха с небольшим диваном или рабочий кабинет с компьютерным столом. Для придания гостиной с лоджией визуального единства, отделку лучше сделать в одной цветовой гамме с использованием одинаковых материалов.
Высокие потолки домов старой постройки позволяют реализовать эксклюзивный проект квартиры-студии с одним окном и вторым уровнем, используемым под спальную зону. Пространство на входе можно занять кухней, место под лестницей можно отвести под хранение вещей. Благодаря такому дизайну, образуется просторная и светлая гостиная, совмещенная с рабочей зоной.
Houzz тур: Ар деко и скрытые резервы на 28 квадратных метрах
Дизайн этой квартиры-студии в Москве доказывает: на 28 кв.
м можно разместить целый мир, если правильно выбрать точку опорыС крошечными квартирами работать сложнее, чем с большими пространствами — они как будто говорят: « Ну, попробуй что-нибудь придумать! » Каждый раз дизайнеру приходится изворачиваться и размещать на паре десятков квадратных метров кухню, столовую, гостиную, рабочий кабинет и изолированную спальню. А может, найдется место еще и для подсобной комнаты? О том, как с достоинством выйти из подобной ситуации, посмотрим на примере дизайн-проекта квартиры-студии « Тишинка 28,8 », реализованного молодым дизайнером Марией Дадиани.
О проекте
Место: Москва
Год: 2014
Площадь: 28,8 кв.м
Кто здесь живет: Молодая семейная пара без детей
Автор проекта: Мария Дадиани
История: Небольшую однокомнатную квартиру рядом с Тишинской площадью в Москве приобрела молодая супружеская пара. Они любят путешествовать, а вдохновение черпают в атмосфере Парижа и Нью-Йорка 30-х годов прошлого века.
От интерьера заказчики ожидали элегантности, утонченности и ретро-настроения. Чтобы добиться результата, дизайнер решила начать с зеркала, чья форма и фактура ассоциируются с нью-йоркским небоскребом Крайслер-билдинг, затем в интерьере появились элементы ар деко. Но главная « изюминка » проекта — в планировке.Заказчики сразу обозначили, что хотели бы увидеть после ремонта гостиную, кухню, рабочий кабинет и изолированную спальню. На все про все — 28,8 « квадратов » в прямоугольном периметре квартиры-студии . Дизайнер, помимо этого, выкроила еще и место для кладовки. Но обо всем по порядку.
Исходная планировка квартиры-студии не годилась для решения поставленных задач. Изначально в квартире была кухня, площадью чуть меньше пяти метров, 19,3 « квадрата » занимала комната, а еще по 2,5 кв. м приходилось на санузел и коридор. « Благодаря тому, что несущие стены расположены по периметру прямоугольной квартиры, удалось по-новому организовать ее пространство » , — вспоминает Мария.
Собственно, цела осталась только одна стена — та, что отделяет санузел от прихожей.
Вид на объединенную кухню-гостиную-кабинет. Барная стойка делит пространство на две части.
Новый проект квартиры-студии площадью 28 кв.м изменил и положение мебели в гостиной. Вместо громоздких шкафов напротив дивана Мария Дадиани сделала необычный встроенный стеллаж с телевизором по центру. « Практически вся мебель была произведена на заказ, — рассказывает дизайнер. — Диван в гостиной заказали только после установки барной стойки, которую, в свою очередь, пришлось укоротить для более просторного прохода в зону кухни » . «Утопленный » в стене стеллаж придает пространству глубины. К тому же у хозяев появилось достойное место для хранения сувениров, которые они привозят из своих многочисленных путешествий.
Дизайн-проект маленькой квартиры-студии изначально предполагал оставить спальную зону в общем пространстве с возможностью быстро изолироваться.
От кухни-гостиной спальню отделяет декоративная штора, а от прихожей — шкаф. Это один из немногих предметов, купленных готовым, а не изготовленных на заказ, как остальная мебель в квартире.
« В отделке пола гостиной и спальни использовалась паркетная доска “ Дуб Нордик”, тонированное дерево. Такой оттенок выбран неслучайно, светлое покрытие создает ощущение легкости » , — поясняет автор проекта.
На вопрос « Что было самым сложным в проекте » , дизайнер отвечает: само пространство, « проектировка требовала высочайшей точности, ведь ошибка всего в 5 миллиметров могла привести к тому, что в ванной комнате не поместилось бы необходимое оборудование: унитаз, раковина или душевая кабина ».
ОБ АВТОРЕ ИНТЕРЬЕРА…
Перейдите на страницу Марии Дадиани , чтобы изучить другие работы из портфолио дизайнера или заказать собственный проект
___________________________
В ВАШЕМ ГОРОДЕ …
Найдите дизайнера на Houzz— закажите собственный проект
Как выжать максимум из студии: 28 квадратов в скандинавском стиле
Даниилу и Анне Щепанович удалось сделать практически невозможное – оборудовать на 28 квадратах кухню, обеденную зону, два спальных места и кабинет.
«Особенность этой студии – линейное расположение кухни. Несмотря на небольшой размер, в ней поместилось самое необходимое, а мы сэкономили место для полноценного обеденного стола – уж очень хотелось обойтись без барной стойки, – рассказывает Анна. – В гостиной, по сути, хозяева будут и есть, и смотреть телевизор, и спать – маленькая площадь обязывает. В детской мы предусмотрели спальное место (кровать побольше здесь тоже поместится), складной рабочий стол и игровую зону. Уединиться всегда можно на балконе: там кабинет и библиотека – все в одном».
Конечно, мало кто ожидает увидеть много систем хранения в маленькой квартире, но дизайнеры справились мастерски и с этой задачей. Основным местом стал встроенный шкаф в комнате, для спортивного инвентаря спроектировали вместительную антресоль в коридоре. Даже перегородка из гипсокартона выполняет роль открытого стеллажа – каждому сантиметру нашли применение.
Особое внимание уделили освещению – оно помогает зонированию: здесь и встроенная подсветка кухни, и стильные подвесы над гостиной зоной, композиция из светильников над рабочим столом.
Отлично смотрятся лаконичные белые споты в детской – они дают хорошее освещение, но не бросаются в глаза.
«Заказчице нравится марокканский стиль, но он слишком яркий и кричащий для такой маленькой площади – мы предложили использовать его акцентно в отделке, – говорит Даниил. – Для коридора, ванной комнаты и балкона подобрали пеструю плитку. Интересный элемент – дверцы шкафа с геометрическим узором. В остальном мы придерживались принципов скандинавского дизайна: черно-белая палитра, лаконичная мебель и минимум декора».
Планировка
Бренды, представленные в проекте
Прихожая
Отделка: плитка на полу, Halcon Moments Mix; краска, Dulux
Зона гостиной и зона детской
Отделка: краска, Dulux
Напольное покрытие: паркетная доска, Goodwin
Мебель: диван, детская кроватка, рабочий стул, ИКЕА
Освещение: настольная лампа, ИКЕА; подвесные светильники в диванной зоне, Josephine Jaime Hayon
Зона кухни
Отделка: краска, Dulux; плитка для фартука, Biselado Classictau Ceramica; грифельная краска, Tikkurila
Мебель: стулья, Etagerca; стол, Red Black
Освещение: подвесные светильники над столом, Verre.
Санузел
Отделка: плитка на полу, Voltare‐Sommar Klassiska Marrakech Design; плитка под кирпич на стенах, Victorian; плитка для облицовки столешницы под раковину, Base Rojo Antiguo Onda
Санфаянс: Roco
Освещение: светильник, Glans Latitude
Балкон
Отделка: плитка на полу, Halcon Moments Mix; краска, Dulux
Мебель: книжный шкаф, Sea Container; компьютерный стол, The Idea; стул, Еames
Освещение: настенный светильник, Ancient Lantern
Хотите, чтобы ваш проект был опубликован на InMyRoom? Присылайте фотографии / 3D-визуализации на [email protected]
Создайте интерьер с товарами из магазина InMyRoom:
Интерьер маленькой квартиры-студии 28 кв. м.
Скромные размеры в интерьере маленькой квартиры-студии 28 кв. м. не помешали устроить и кухню, и гостиную и спальную зону, и зону отдыха.
Дизайн квартиры-студии 28 кв. м. разработан с таким расчетом, чтобы уместить в небольшом пространстве все необходимое для комфортной жизни.
Скромные размеры не помешали устроить и кухню, и спальную зону, и зону отдыха. Уместилась даже гостиная, пусть и совсем крохотная.
Планировка
В случае, если общая площадь жилого пространства невелика, разделять его перегородками не стоит – это уменьшает и без того небольшую площадь. В дизайне квартиры-студии 28 кв. м. помещение разделяется на отдельные зоны визуально, на выполнение этой задачи работают разные напольные покрытия в зонах.
Дополнительно возвели стеклянную перегородку между кухней и гостиной, отлично вписавшуюся в интерьер маленькой квартиры-студии.
Чтобы не загромождать и без того не слишком обширное пространство, дизайнеры постарались подобрать минимальное количество мебели – только то, без чего нельзя обойтись. При этом как раз на мебели и сделан акцент в дизайне квартиры-студии 28 кв. м. – она имеет очень интересные, необычные формы. Кресло и журнальный стол являются настоящими арт-объектами, привлекающими внимание и придающими стиль.
Основным цветом в интерьере маленькой квартиры-студии является спокойный серый. К нему добавлен желтый в качестве акцентного. Игра света от необычных по форме настенных светильников создает торжественную атмосферу, а точечные светильники позволили обойтись без люстры.
Кухонная зона
Интерьер маленькой квартиры-студии выдержан в современном стиле. Цветовая гамма спокойная, комфортная, активный желтый добавляет экспрессии и позитивной энергии.
Прихожая
Туалет
В туалетной комнате использован тот же основной серый тон, что и в жилом помещении, а желтое полотенце и полки того же цвета стали яркими акцентами.
Источники:http://www.houzz.ru/statyi/houzz-tur-ar-deko-i-skrytye-rezervy-na-28-kvadratnyh-metrah-stsetivw-vs~44463637http://www.inmyroom.ru/posts/13243-studiya-nedeli-28-kvadratnyh-metrov-dlya-komfortnoj-zhiznihttp://design-homes.
ru/kvartiry/474-interer-malenkoj-kvartiry-studii-28-kv-mhttp://dekoriko.ru/kuhnya/sovmeshchennaya/dizajn-studii-29-kv-m/
Дизайн квартиры студии до 28 метров: оформление
Сегодня модной тенденцией является планировка небольшой квартиры по типу студии с минимальным количеством предметов интерьера и мебели. Квартира студия 29 кв. м легко будет отвечать современным требованиям, когда для оформления скромного пространства используются различные хитрости. Без такого подхода не получается красивый, практичный и функциональный дизайн.
Содержание статьи
Студийный вариант
Если помещение имеет небольшую площадь, то перепланировка в студию является необходимым решением.
Фото 2-х ярусной квартиры около 28 квадратов
Производя ремонт квартиры студии 28 кв. м, рекомендуется убрать лишние стены, создав одно помещение:
- Благодаря отсутствию лишних перегородок все свободное пространство можно логически разделить и более эффективно использовать.

- Такое решение выглядит достаточно привлекательно, а квартиры – стильно и современно.
- Дизайн квартиры студии 28 кв. м призван выполнять визуальное разделение пространства на логические зоны.
- Эту задачу можно решать использованием разных напольных покрытий, различной отделкой стен, а также частично освещением.
Дополнительно могут возводиться легкие или стеклянные перегородки
Выполнить это непросто, потому что в ограниченном пространстве необходимо расположить удобно:
- Прихожую.
- Зонированное жилое помещение.
- Ванную.
Дизайн квартиры студии 29 кв. м разрабатывается так, чтобы разместить на ограниченном пространстве все, что требуется для комфортного проживания.
Скромные габариты комнаты не должны мешать обустроить:
- Кухню.
- Спальню.
- Гостиную с зоной отдыха.
Обратите внимание. Достаточно неудобно, если шум от поведения одного человека, например, не дает спать другому.
Поэтому необходимо тщательно продумать размещение и разделение логических зон.
При планировке квартиры студии 28 квадрата нельзя позволить выделить отдельную комнату, например, под спальню.
Зонирование пространства
Как зонировать помещение?
Если в небольшой квартире (25 квадратов) планирует поселиться исключительно один человек, тогда соседство кухни со спальной зоной дискомфорта не вызовет. Когда собираются проживать двое, то могут возникнуть сложности.
Поэтому необходимо продумать особенности и привычки каждого:
- Кто, когда предпочитает готовить.
- Работать
- Или спать.
Дизайн квартиры студии 28 кв с двумя проживающими имеет свои нюансы:
| Варианты разделения | Сфера применения |
| Цвет и тип отделочного материала на стенах, потолке, полу. | Логически разделяются жилые зоны. |
| Стеклянные раздвижные двери (перегородки). | Физически разграничивают кухню и зону сна.![]() |
| Декоративная штора. | Можно отгородить спальню. |
| Барная стойка. | Гостиную зону удобно разделять с кухней. |
Планировка
Все очень просто и лаконично
В квартире рекомендуется отделить прихожую и ванную, а на жилой площади организовать:
- Кухню.
- Спальню.
- Гостиную.
Надо оформить спокойный интерьер, где помещается минимальный набор мебели и бытовой техники.
Создавать проект квартиры студии 28 необходимо так, чтобы удалось организовать пространство рационально:
- Роль гостиной может играть удобный компактный диван.
- Обязательно надо продумать системы хранения в коридоре, спальне и гостиной.
- Также желательно предусмотреть полочки, шкафчики для хранения хозяйственных предметов в ванной и кухонной зоне.
- При планировке важно соблюдать размеры. Потому что проектировка требует высокой точности. Малейшая ошибка может привести к ситуации, когда что-либо может не поместиться.

Обратите внимание. Мебель, которой обставляется квартира студия 28 кв. м, производится по индивидуальному заказу.
Оформление пространства
При создании дизайна рекомендуется выбрать индивидуальный стиль
Все должно быть наполнено максимальной функциональностью, но и красиво:
- Часто проблемой становится недостаток свободного места из-за неправильно размещенной мебели (см. Как подобрать мебель для квартиры студии).
- Начать оформление рекомендуется с кухни, где требуется размещать минимум бытовой техникой.
- Лучше выбирать компактные многофункциональные устройства (инструкция поможет использовать все возможности).
На очень интересной, имеющей необычные формы мебели
- На не большом пространстве стоит выбрать минимальный набор мебели – все самое необходимое.
- Хорошо использовать складной стол со стульями. Они легко убираются, когда не используются.
- Полезно использовать сделанную на заказ мебель-трансформер (ее цена существенно выше обычной).
Это предоставит возможность (по мере необходимости) преобразовать одну зону в другую. - Чтобы оформить спальню, можно выбрать диван-кровать. К хорошим вариантам относится двухъярусная кровать, внизу которой располагается шкаф.
Дизайн квартиры студии до 28 метров позволяет разделить кухню со спальней отделкой либо установкой дополнительных перегородок.
- Для этих же целей может использоваться небольшой шкафчик либо комплект декоративных полочек.
В объединенный с туалетом санузел ванна не устанавливается, а достаточно современной душевой кабины. Если место позволяет, то стиральная машина размещается здесь же, или располагается в кухонном гарнитуре.
Как выполнить зональное разделение?
- Различное цветовое, световое оформление.
- Установка разноуровневого потолка из различных материалов.
- Выделять акценты (фото, картины).
- Рациональная расстановка мебели.
- Установка раздвижных дверей, шкафов, ширм и прочие.

Освещение
Для помещения продумываются разные сценарии освещения
Для создания особой атмосферы используются различные светильники (бра или настольные лампы), их рассеивающий свет позволяет создавать мягкость интерьера (см. Как правильно выполнить освещение):
- Хрустальная люстра в гостиной, например, вносят торжественность в интерьер. Точечные потолочные светильники позволяют не вешать люстру.
- При создании дизайна своими руками, требуется достичь максимально комфортного использования имеющегося пространства, даже если квартира студия имеет 23 квадрата.
Тогда привлекательность, практичность и функциональность обязательно будут обеспечены. Для полной информации рекомендуем посмотреть видео в этой статье.
Для нас важно ваше мнение:
Загрузка … Загрузка … Загрузка …Был ли полезен для вас материал?
вдохновляющие идеи и дельные рекомендации по созданию уютного, удобного и красивого гнездышка – Ваш надёжный дом
Квартиры-студии – востребованное на сегодняшний день жилье, поскольку привлекает открытой планировкой, что весьма модно, заманчивой ценой и огромнейшим выбором.
Такие квартиры с удовольствием покупают молодые люди, стремящиеся обзавестись собственным жильем. Конечно же, каждому человеку хотелось бы жить в просторной квартире, но, к сожалению, цены не радуют доступностью. Но отчаиваться не следует, лучше быть счастливыми хозяевами миниатюрного жилья, нежели скитаться по съемным квартирам. А создать комфортное, привлекательное и практичное «гнездышко» под силу каждому человеку. Дизайн квартиры-студии 28 кв. м разработать достаточно просто, кроме того, очень интересно.
Рекомендации специалистов
Чтобы создать интерьер своей мечты, нужно прислушаться к советам гуру дизайнерского искусства.
- Цветовая гамма. Предпочтение необходимо отдать пастельной палитре, поскольку темные и чересчур яркие оттенки «съедают» пространство.
- Облицовочный материал. Обратить внимание следует на материалы с зеркальной или глянцевой поверхностью, так как они приподнимают потолок и расширяют стены, визуально прибавляя помещению желанных объемов.

- Стилевое направление. В маленьких квартирах-студиях уместны – лаконичный минимализм, практичный хай-тек, цветочный прованс, милый кантри, освежающий эко. Категорически не рекомендуются рококо, барокко, классицизм, ампир.
- Освещение. Чем больше осветительных приборов, тем лучше, так как обилие света визуально увеличивает помещение.
- Зонирование. Воспользоваться следует стеклянными перегородками или тканевыми ширмами, отделочным сырьем и мебелью.
- Предметы интерьера. Не стоит загромождать миниатюрное жилье объемной мебелью и множеством аксессуаров. Безупречный вариант – это многофункциональные малогабаритные предметы-трансформеры и минимум декора.
Таким образом, маленькая квартира порадует уютом, теплом семейного очага, комфортом и привлекательностью.
Идеи для вдохновения
Нет идей? Представляем вашему вниманию работы гениальных маэстро дизайнерского искусства. Надеемся, они позволят проснуться вашей Музе.
28 кв.
м невесомостиКвартира, «одеяние» для которой создавал Игорь Крылов, невероятно привлекательна и комфортабельна.
Достичь потрясающего результата удалось благодаря использованию белого цвета, сметающего границы, и бирюзового оттенка, преподносящего свежесть. Кроме того, дизайнер использовал глянцевое облицовочное сырье, большое количество осветительных приборов, компактную мебель, минимум аксессуаров, грамотно зонировал пространство с помощью функциональных перегородок, что позволило разделить квартиру на области, требующиеся для полноценной жизнедеятельности хозяев.
В целом, дизайнерские хитрости и приемы сотворили чудо, поскольку квартира-студия дышит простором и выглядит весьма презентабельно.
Воздушная и нежная квартира-студия
Миниатюрная квартира, площадью 28 кв. м, после манипуляций маэстро дизайнерского искусства – Екатерины Матвеевой, превратилась в настоящие хоромы.
Жилище балует невесомостью, обилием света, воздуха. Кроме того, помещение выглядит уютным, практичным и привлекательным.
Нежная цветовая гамма, изящные предметы интерьера, огромное окно, незанавешенное шторами, большое количество зелени воссоздают райский уголок, где приятно спрятаться от шумной окружающей среды, наслаждаясь спокойствием и умиротворением. Кроме того, дизайнер предусмотрел массу мест для хранения и ряд многофункциональных малогабаритных предметов-трансформеров, что очень удобно и практично.
Интерьер квартиры очаровывает благородной простотой.
Лаконичный дизайн квартиры-студии
Небольшая квартира-студия, «убранство» для которой подбирала гуру интерьерной моды – Анастасия Киселева, лаконична, но при этом эстетична и эргономична.
Помещение «одето» в серые, синие, бежевые, коричневые и белые цвета, что делает квартиру теплой, просторной, бодрящей и по-домашнему уютной.
Квартира разделена на рабочую область, зону отдыха, кухню, ванную и прихожую. Все участки невероятно гармоничны между собой и составляют прекрасный мелодичный ансамбль.
Такого результата удалось достичь благодаря многофункциональным и простым предметам обстановки, грамотному зонированию, захватывающей игре цветов, оригинальным осветительным приборам.
В квартире минимум мебели и аксессуаров, но, тем не менее, в ней есть все для полноценного проживания, за счет чего жилище только выигрывает.
Проекты доказывают, что дизайн квартиры-студии 28 кв. м может быть и комфортным, и привлекательным, и уютным, и многофункциональным, вне зависимости от размеров.
Оформление дизайна студий 28 кв м в современном стиле
50% жилья на российском рынке предлагают квартиры по типу студии. У такой недвижимости низкая цена и небольшая площадь. Звучит заманчиво, но как делать ремонт в квартире на 28 кв.
м., чтобы там поместилось все необходимое?
Блок: 1/7 | Кол-во символов: 222
Источник: https://skedraft.ru/kvartira/28-kv-m
Как и всем работам, подготовительным операциям надо уделять должное внимание. Чем более продуманные действия, тем быстрее закончатся строительные работы, тем меньше потребуется финансовых средств, тем качественнее выполняется дизайн.
Как надо действовать?
- Нарисуйте план существующей студии и проставьте размеры. Не надо делать полноценный чертеж, можно подготовить простейший эскиз. Для дальнейшей работы понадобится несколько таких рисунков, на них будет планироваться расстановка мебели, перегородок, декора и т. д. Примерно прикиньте размеры и расположение различных зон. Мы уже упоминали, что потребуется несколько эскизов, каждый вариант надо рисовать на отдельном.
Эскиз можно нарисовать от руки
» data-listid=»1″>Сделайте эскиз студии после перепланировки. Тоже укажите все размеры, расставьте мебель. Подготовьте несколько вариантов, оставьте работы на несколько дней для обдумывания. Практика доказывает, что именно в период перерыва появляются очень правильные решения. Никогда не надо спешить, творческие занятия не переносят суеты. - Выберите стиль и материалы оформления стен, потолка и пола. Составьте смету с указанием стоимости, количества и номенклатуры материалов. Сравните фактические общие затраты со своими реальными финансовыми возможностями. Не беритесь выполнять завышенные требования.
Составьте список приобретений, а ориентировочные цены уточняйте в интернет-магазинах
- Подготовьте расходные материалы и приступайте к выполнению строительных работ.
На этом этапе еще можно вносить незначительные корректировки, решайте все возникающие проблемы по ходу строительных работ.Фото до и после ремонта
- Купите мебель и расставьте ее согласно сделанной планировке.
Осталось расставить мебель
Можно составить проект в 3D
Если ко всем этапам подходить ответственно, то конечные результаты работы обязательно порадуют.
Во время планировки надо учитывать освещенность помещения, для каждой зоны имеются свои требования СанПиН, обязательно надо вначале их выполнять, а только потом обращать внимание на внешний вид и стиль осветительных приборов.
Если студия имеет балкон или лоджию – отлично, они позволят увеличить размер жилой площади, но надо принимать во внимание несколько важных факторов по присоединению таких элементов к студии. Большинство действий требует предварительного согласования с владельцами домов или управляющими компаниями.
Есть не только инженерные проблемы, касающиеся сохранения несущих характеристик элементов строения. Возникают сложности с расчетами за тепловую энергию.
Блок: 2/7 | Кол-во символов: 2528
Источник: https://remont-book.com/dizajn-studii-28-kv-m/
Интерьер однокомнатной квартиры с отдельной спальней
В гостиной — кухня в стиле неоклассика с мраморным фартуком, в спальне нет окна, но есть гардеробная, а в ванной воцарилась атмосфера скандинавского минимализма.
Блок: 2/3 | Кол-во символов: 479
Источник: https://roomble.com/ideas/kvartiri-i-doma/kvartiry-do-45-kv-m/dizajn-kvartiry-ploschadyu-28-metrov/
Особенности квартиры-студии
Такую квартиру, уже с готовой планировкой, можно приобрести непосредственно у застройщика. Другим вариантом будет переоборудовать однокомнатную в современную студию. Здесь необходимо учесть, что делая перепланировку самостоятельно можно столкнуться с некоторыми трудностями. Придется добиваться разрешения в соответствующих инстанциях.
Ведь нужно будет сносить стены, а можно убирать только не несущие простенки. В квартире студии, в большинстве случаев, стены предусматриваются только для санузла и ванной комнаты, остальное пространство остается открытым. Поэтому необходимо тщательно обдумать, что является более важным, современное просторное жилье или возможность уединиться в отдельной комнате. Семьям, в которых проживают двое и больше детей лучше отказаться от такого типа жилья в пользу обычных квартир с несколькими комнатами.
Жилые помещения с метражом 28 кв. м. могут быть прямоугольными, квадратными, в виде тоннеля. Если вы только собираетесь приобрести такое жилье, то рекомендуется остановить свой выбор на квартире в форме квадрата.
Блок: 2/7 | Кол-во символов: 1092
Источник: http://thewalls.ru/neobyichnyie-resheniya/dizayn-studii-28-kv-m-planirovka-i-prime.html
Квартира-студия 28 кв м: плюсы и минусы
Учитывая особенности, квартира студия подходит далеко не всем.
Если вы все же решились на такую планировку, учтите ее плюсы и минусы:
- + Просторность.
- + Вместительность.
- + Современный дизайн.
- – Возможные бюрократические трудности с перепланировкой.
- – Относительно небольшая площадь.
- – Не подходит для большой семьи с детьми.
Помещение будет освещено лучше, поскольку квартира превратится в естественно освещенное пространство с двумя окнами без узких и темных коридоров.
Блок: 3/10 | Кол-во символов: 511
Источник: https://dizainexpert.ru/interer/oformlenie-dizajna-studij-28-kv-m-v-sovremennom-stile/
Разработка дизайн-проекта
При разработке проекта, согласовывать с местными властями, нужно только снос стен, замену проводки и труб, если это потребуется.
При планировке, в первую очередь, важно выделить участки для кухни, столовой, сна, работы. Распределяя на схеме функциональные зоны удобно руководствоваться принципом кухня-гостиная-спальня. Остальное пространство можно использовать на свое усмотрение.
Необходимо будет составить план будущей студии, продумать размещение функциональных зон, расстановку мебели, систему хранения вещей. Каждую деталь желательно учесть еще на этапе планирования. Важно, чтобы квартира-студия была просторной и хорошо освещалась. Если в помещении есть только одно окно, тогда необходимо добавить больше источников искусственного освещения по периметру потолка. Когда в студии есть два окна, дополнительного дневного освещения не потребуется, помещение будет достаточно светлым.
Большим преимуществом в квартире-студии является наличие балкона. Его можно превратить в гардеробную, лаунж-зону или в рабочий кабинет. Это позволит сэкономить дополнительные метры и создать необходимую функциональную зону. Заранее необходимо позаботиться об утеплении лоджии.
Блок: 3/7 | Кол-во символов: 1187
Источник: https://www.vsaunu777.ru/uslugi/dizayn/dizayn-kvartir/2025-dizayn-studii-ploschadyu-28-kv-m-50-foto-interera-dizayn-kvartir.
html
Грамотная планировка квартиры студии
Важно продумывать проект будущей студии с учетом индивидуальных потребностей жильцов. Ведь для девушки может быть желательнее иметь вместительную гардеробную, а для мужчины важнее окажется рабочая зона, место для проведения досуга и встреч с гостями. Для семейной пары с ребенком будущее жилье планируется так, чтобы у каждого члена семьи было свое личное пространство. Идей для планировки квартиры-студии 28 кв. м. большое множество. Для их реализации можно обратиться к профессиональным архитекторам и дизайнерам интерьеров или попробовать воплотить свои идеи самостоятельно.
В оформлении квартиры-студии нужно придерживаться одного дизайнерского стиля, например минимализм, лофт, скандинавский, классический и так далее. Зонирование пространства осуществляется при помощи различных приемов. Функциональные зоны можно разделить используя декоративные элементы, предметы мебели, многоуровневые конструкции потолка, различные половые покрытия, условные перегородки.
В студии где проживает ребенок лучше приобретать многофункциональную, комплексную мебель, двухъярусные конструкции. Например кровати со встроенными ящиками, полками для хранения вещей или спальное место соединенное с шкафом или письменным столом. Зонировать личное детское пространство можно при помощи ширм, занавесок, раздвижных перегородок. Иногда для разделения пространства служат предметы мебели, открытые стеллажи, небольшие шкафы и другие. Для подростка можно оборудовать спальное место на втором ярусе, под которым будет располагаться рабочая зона.
Прихожая
Прихожую в квартире-студии отделяют декоративными перегородками или другим напольным покрытием. В этой зоне должно быть минимум аксессуаров. Это могут быть крючки, обувные полки, большое настенное зеркало. Также в прихожей необходимо позаботиться об отдельном освещении. Встроенный шкаф-купе или ниша с зеркальными, раздвижными дверцами обеспечит место для хранения вещей и будет одновременно выполнять функцию зеркала.
Установив угловой шкаф можно значительно сэкономить площадь помещения. В малогабаритных хрущевках, в прихожих часто встречаются кладовые, которые служат местом для хранения вещей. Если в кладовку установить раздвижные двери, получится вместительный шкаф-купе, который не займет много пространства.
Дизайн двухкомнатной квартиры — планировки и интерьер (50 фото)
В маленьких прихожих не рекомендуется устанавливать системы хранения вещей открытого типа, чтобы избежать загромождения территории.
Кухня и обеденная зона
В рабочей кухонной зоне устанавливается функциональный гарнитур или встроенная мебель с бытовой техникой. В малогабаритном помещении рациональнее иметь минимальное количество оборудования, только самое необходимое. Если на кухне расширить подоконник и под ним разместить полки, выдвижные ящики, таким образом можно создать дополнительное место для бытовой техники, хранения посуды или других необходимых вещей.
Рабочую зону от обеденной можно отделить барной стойкой.
Это создаст дополнительные места для гостей и домочадцев. Также зоны отделяются декоративными перегородками, различным половым покрытием. Например на кухне кафель, в столовой ламинат. Чтобы стыки отличимых напольных покрытий выглядели эстетично, используются специальные накладки.
Гостиная
В зоне отдыха можно установить диван-трансформер или раскладную кровать, такая мебель обеспечит дополнительное спальное место. В некоторых случаях диван одновременно служит своеобразной перегородкой. Для экономии территории, телевизор лучше повесить на стену. В гостиной зоне, для разделения пространства, устанавливаются многоуровневые потолки, на пол стелется мягкий ковер.
Спальное место
Желательно расположить спальную зону подальше от кухни и санузла. Место для сна можно выделить подиумом, под которым разместится дополнительное место для хранения вещей. Иногда, в маленьких помещениях устанавливается кровать вмонтированная в шкаф, которая раскладывается только на время сна или отдыха.
Если высота помещения позволяет, то спальное место организовывается сверху, на втором ярусе. Под ним останется дополнительный участок, к примеру для рабочего места или отдыха.
Спальная зона отделяется при помощи различных вариантов:
- декоративные перегородки;
- сквозные стеллажи;
- ширмы, текстильные занавески, балдахин.
Рабочее место
Рабочая зона, чаще всего, организовывается в гостиной или спальной. Для этого можно использовать раскладную, выдвижную мебель. Главное, чтобы место для работы, учебы хорошо освещалось. Для организации рабочего пространства иногда расширяют подоконник, который послужит своеобразным столом. Такой участок для работы или учебы будет прекрасно освещаться солнечным светом в дневное время суток. Если нет возможности использовать место под окном, лучшим решением будет приобрести компактную, трансформирующуюся мебель.
Дизайн маленькой квартиры — идеи интерьера (фото)
Ванная
Ванная комната и санузел должны быть изолированными от остального пространства квартиры-студии.
То есть, стены, двери, в этом случае, остаются на своих местах. Раздвижные двери, в отличие от распашных, позволят сэкономить дополнительное пространство. Угловая сантехника и мебель займут меньше места в маленьких комнатах. Если ванная и санузел раздельны, их можно совместить. Если перенести унитаз в ванную, то освободится дополнительный метраж для остального пространства студии. В небольших квартирах-студиях чаще устанавливаются душевые кабинки вместо ванн.
Блок: 4/7 | Кол-во символов: 5499
Источник: http://thewalls.ru/neobyichnyie-resheniya/dizayn-studii-28-kv-m-planirovka-i-prime.html
28 метров: студия или нет?
Из 28 метров три отданы под ванную комнату. Окна два, но они находятся слишком близко друг к другу, так что сделать две комнаты не получилось. Около входной двери сделали кухню-гостиную с островом в стиле лофт, спальню разместили в дальней нише и поставили там большой шкаф. Площадь спальни — 7 метров, площадь комнаты — 18 метров.
Кухня получилась очень просторной, комната с гарнитуром и большим модулем выглядела небольшой.
Дизайнер решил не скрывать громоздкость кухни, использовал чёрный цвет для фасадов, мрамор и подсветку буфетных шкафчиков.
Кухни такого типа можно найти как в Стокгольме, так и в Нью-Йорке и Лондоне. Все их можно назвать неоклассическими. Такие кухни используются как в скандинавском стиле, так и в неоклассике. От стиля кантри гарнитур такого типа отличают элегантность и вытянутость силуэта с узкими модулями.
Окна и зоны вокруг них со всех сторон тоже окрашены в чёрный цвет. Этническая козетка рядом с диваном и пуфик поддерживают атмосферу аристократичной роскоши.
Скандинавский интерьер можно назвать разновидностью европейского. Скандинавский отличает стремление к невесомости, светлым тонам, аккуратному и символичному мелкому декору.
Блок: 3/3 | Кол-во символов: 1882
Источник: https://roomble.com/ideas/kvartiri-i-doma/kvartiry-do-45-kv-m/dizajn-kvartiry-ploschadyu-28-metrov/
Какой стиль выбрать для маленькой квартиры
В однокомнатной квартире не больше 29 м.
кв. применяют минимализм, арт-деко, дизайн в современном и скандинавском направлении, лофт. Судя по фото, эти стили лучше всего вписываются в малогабаритное пространство.
Планировка квартиры студии в традициях минимализма подразумевает отказ от декора и ненужных деталей, на 28 м. кв. это будет лишним. Используется все практичное и не громоздкое. Гамма светлая.
Лофт – брутальный стиль. Он четко выделяет рабочие зоны и места для отдыха. Часто в дизайне квартир используют отделку под натуральный камень, кирпич. Фото стиля лофт акцентируют внимание на хэнд мэйд аксессуары, старинные вещи.
Современный стиль 1-комнатной квартиры до 28 квадратных метров предусматривает большое количество мест для хранения, натуральные материалы в отделке, светодиодные ленты. Цвета – от белого к серому с элементами коричневого.
Блок: 4/7 | Кол-во символов: 895
Источник: https://skedraft.ru/kvartira/28-kv-m
Дизайн
Хороший проект перепланировки и грамотное зонирование должны быть разработаны так, чтобы уместить в студии прихожую, санузел, кухню, зону отдыха и подсобное помещение.
Планируя организацию студии 28 квадратных метров любой конфигурации, с целью добавления простора и комфорта следует руководствоваться следующим:
- можно уменьшить площадь ванной, совместив ее с туалетом, так как лучше сэкономить полезное пространство в пользу увеличения кухни;
- установив вместо ванны современную душевую кабину, можно уменьшить площадь санитарной зоны;
- в декоре квартиры можно разместить на стенах друг против друга зеркала или сочетать зеркальные и матовые поверхности;
- в отделке квартиры в целом, а также ванной использовать светлые спокойные оттенки и белый цвет, добавляя яркие акцентирующие внимание детали;
- не забыв утеплить балконную зону, совместить с ней кухонное пространство, при этом допустимо использование подоконного блока в качестве обеденного стола или модной барной стойки;
- обставить пространство мебелью надо рационально, обозначив зону отдыха подальше от входа и оставив свободную зону;
- стационарные перегородки уместны в вытянутом помещении, в остальных случаях лучше зонирование цветами и фактурами отделочных материалов или мобильными перегородками.

Прямоугольная узкая и длинная планировка квартиры требует особых приемов в организации внутреннего пространства. Отличным вариантом для студии 28 кв. м, с шириной, не превышающей трех метров, и расположением двери и окна на узких стенах напротив друг друга может быть зонирование четырехсекционной раздвижной перегородкой. Такая перегородка в интерьере маленькой квартиры между кухонной зоной и зоной отдыха, может быть из прозрачного стекла. Сегодня дизайнеры предлагают необычный способ зонирования с помощью перегородки, одна из сторон которой будет матовой, а другая зеркальной.
Аккуратность и уютный внешний вид студии Г-образной планировки придадут вместительные встроенные шкафы и встроенная бытовая техника, полностью разгружающие интерьер. Подходящим решением для небольшой узкой гостиной может стать отказ от массивной мебели в пользу встроенных откидных конструкций: кровати в зоне отдыха и столешницы в обеденной зоне. Отделка пола светлыми сосновыми досками и белая поверхность оштукатуренных стен и мебели визуально сделают помещение намного светлее и просторнее.
Интересным вариантом станет студия прямоугольной формы, спроектированная из однокомнатной квартиры с балконом или лоджией. За счет присоединения лоджии с качественным остеклением общая площадь помещения увеличивается на несколько квадратных метров, зона гостиной приобретает дополнительное естественное освещение. Лоджия в такой квартире используется как зона отдыха с небольшим диваном или рабочий кабинет с компьютерным столом. Для придания гостиной с лоджией визуального единства, отделку лучше сделать в одной цветовой гамме с использованием одинаковых материалов.
Высокие потолки домов старой постройки позволяют реализовать эксклюзивный проект квартиры-студии с одним окном и вторым уровнем, используемым под спальную зону. Пространство на входе можно занять кухней, место под лестницей можно отвести под хранение вещей. Благодаря такому дизайну, образуется просторная и светлая гостиная, совмещенная с рабочей зоной.
Блок: 4/4 | Кол-во символов: 3980
Источник: https://dekoriko.
ru/kuhnya/sovmeshchennaya/dizajn-studii-28-kv-m/
Дизайн студии 28 кв. м в современном стиле
В данной студии 28 кв. м выполнен дизайн в современном стиле. Это помещение вместило в себя зону кухни, гостиной и спальни.
Кухня выполнена в светлых цветах, белый выбран как основной цвет для кухонного гарнитура. Чтобы не захламлять маленькое пространство кухни – отдали предпочтение встраиваемой бытовой технике.
Центральное место в квартире занимает «парящий» стол, в нем нет опоры. Он выполнен из акрила, а внутри находится металлический каркас. Также он выполняет две функции: обеденный стол и на нем расположена варочная панель. Стена в зоне кухни обшита закаленным стеклом – это помогает маленькой кухне выглядеть очень стильно. Вытяжка и подвесные светильники выполнены в одном стиле, что в свою очередь не нарушает дизайн кухни.
Для зоны спальни-гостиной выбран раскладной диван, который легко превращается в кровать. Также в комнате расположен шкаф для вещей и панель для телевизора с подсветкой, цветовая гамма выдержана в светлых тонах.
Санузел, как и вся квартира, выполнен в светлых цветах. Из-за маленького пространства, отдали предпочтение душевой кабине. Над раковиной установлено зеркало с подсветкой.
Студия 28 кв.м дизайн и фотоДизайн студии 28 кв. м — фото современный стиль
Блок: 2/7 | Кол-во символов: 1260
Источник: https://me-house.ru/studiya-28-kv-m-dizajn-foto/
С помощью мебели часто делается зонирование, отделяется спальное место от зоны отдыха или приготовления пищи. Вместо кровати, лучше устанавливать диван, а пол около него застелить небольшими коврами. Размер полового покрытия должен отвечать примерной площади зоны отдыха.
Диван лучше покупать раскладной, он помогает решать проблемы с размещением места для сна. Конечно, не совсем удобно его каждый день раскладывать, но студии 28 кв. метров не отличаются большой комфортностью для проживания. Во время их меблировки выбирается не то что хочется, а то, что можно в данном конкретном случае.
Правильный диван для квартиры-студии
Полки и шкафы должны быть до самого потолка, только так можно заметно увеличить их вместительность и при этом сохранить максимум свободной жилой площади. Подбирайте мебель с запасом по объему, со временем все свободные отделы незаметно заполнятся вещами.
Дизайн функционального интерьера с удобной организацией мест хранения
Цены на модельный ряд раскладных диванов
Диван раскладной
Блок: 5/7 | Кол-во символов: 1045
Источник: https://remont-book.com/dizajn-studii-28-kv-m/
Выбираем стиль интерьера
Предлагаем топ-5 современных стилей в дизайне интерьеров квартиры – студии.
Лофт
Этот стиль в целом характеризует квартиру студию:
- единое пространство,
- много света,
- акцент на ярких деталях,
- эргономичность и практичность всего в доме.
Лофт подходит творческим и свободолюбивым людям, что ценят простоту и одновременно стремятся к самовыражению.
Скандинавский стиль
По сравнению с лофтом, намного проще и светлее. Этот стиль придется по духу любителям чистоты и экологичности.
- Натуральные материалы.
- Пятьдесят оттенков белого.
- Простота и свет.
Его основные черты – простота, минимализм, натуральные материалы, сдержанные тона.
От этого студия 28 кв м наполнится свежестью, легкостью, широтой и уютом.
Хайтек
Противоположный скандинавскому в своей любви к новому, не всегда экологичному материалу. Это стиль для тех, кто:
- шагает в ногу со временем;
- любит холодные оттенки и металлические конструкции;
- ценит четкость и лаконичность форм.
Прекрасно подойдет для квартиры-студии стиль хай тек в интерьере.
Минимализм
Распространенный в Китае и Японии. Его принцип – простота и практичность. Стены окрашены в один цвет и служат скорее фоном, чистым полотном для других составляющих интерьера.
Для того, чтобы сделать помещение более светлым, добавлено освещение по периметру потолка и несколько дополнительных источников света, которые придают изюминку помещению.
Акцентами служат отдельные предметы: яркие стулья, ковер, полка.
Эко стиль
Все предметы в такой квартире исключительно из экологически чистых материалов:
- Дерево.
- Хлопок.
- Лен.
- Шелк.
- Глина.
И другие атрибуты жизни в стиле «эко».
Цветовое решение в нейтральной гамме: бежевый, зеленый, коричневый в спокойных тонах.
Интересным решением будет стена из декоративного мха или аквариум в качестве перегородки.
Блок: 6/10 | Кол-во символов: 1790
Источник: https://dizainexpert.ru/interer/oformlenie-dizajna-studij-28-kv-m-v-sovremennom-stile/
Как расставить мебель
Для кого-то может показаться, что с расстановкой мебели в маленькой квартире площадью до 30 кв. м. не должно быть проблем – достаточно продумать дизайн, размещение функциональных зон, изучить фото планировок. Но существуют некоторые тонкости.
Если однокомнатная квартира предназначена только для одного человека, то количество мебели может быть минимальным: достаточно небольшого уголка на кухне, кровати или дивана для сна и зоны с телевизором.
Гардеробная отпадает.
В однокомнатную квартиру, где будет проживать пара, понадобится больше мебели и ее размещение желательно тщательно продумать. Для наглядности можно посмотреть различные фото дизайнов помещений на 29 м. кв. с разными версиями обстановки.
Обычно пространство в студиях разделяется мебелью. При этом важно, чтобы она не мешала передвигаться по квартире. Спальное место на 29 кв. м. обычно изолируют перегородками или фальш-стенами. Вместо обеденной группы располагают барную стойку. Места для хранения можно организовать на балконе.
Блок: 6/7 | Кол-во символов: 1016
Источник: https://skedraft.ru/kvartira/28-kv-m
Особенности освещения небольшого пространства
При создании современного дизайна квартиры-студии, центральную, гостиную зону необходимо осветить как можно лучше. В остальных участках используется освещение рассеянного типа. В небольшой квартире не рекомендуется устанавливать массивные, объемные люстры. Вместо этого лучше использовать несколько плоских, маленьких светильников.
Так помещение станет восприниматься как более просторное. Каждая функциональная зона должна освещаться отдельными источниками искусственного света. К примеру в рабочей зоне устанавливается настольная лампа или настенный светильник, в спальне бра, ночник. В квартире-студии должно быть многоуровневое освещение.
Блок: 6/7 | Кол-во символов: 687
Источник: https://www.vsaunu777.ru/uslugi/dizayn/dizayn-kvartir/2025-dizayn-studii-ploschadyu-28-kv-m-50-foto-interera-dizayn-kvartir.html
Интерьер студии 28 кв. метров
Интерьер выполнен в серо-розовых тонах. Выделено две основные зоны: спальня и кухня-гостиная. Балкон переоборудован в кабинет. В коридоре установлен большой зеркальный шкаф, в котором спрятан туалетный столик.
Блок: 6/7 | Кол-во символов: 247
Источник: https://me-house.ru/studiya-28-kv-m-dizajn-foto/
Количество использованных доноров: 8
Информация по каждому донору:
- https://dizainexpert.
ru/interer/oformlenie-dizajna-studij-28-kv-m-v-sovremennom-stile/: использовано 2 блоков из 10, кол-во символов 2301 (8%) - http://thewalls.ru/neobyichnyie-resheniya/dizayn-studii-28-kv-m-planirovka-i-prime.html: использовано 2 блоков из 7, кол-во символов 6591 (24%)
- https://dekoriko.ru/kuhnya/sovmeshchennaya/dizajn-studii-28-kv-m/: использовано 2 блоков из 4, кол-во символов 5392 (19%)
- https://me-house.ru/studiya-28-kv-m-dizajn-foto/: использовано 3 блоков из 7, кол-во символов 1931 (7%)
- https://www.vsaunu777.ru/uslugi/dizayn/dizayn-kvartir/2025-dizayn-studii-ploschadyu-28-kv-m-50-foto-interera-dizayn-kvartir.html: использовано 2 блоков из 7, кол-во символов 1874 (7%)
- https://roomble.com/ideas/kvartiri-i-doma/kvartiry-do-45-kv-m/dizajn-kvartiry-ploschadyu-28-metrov/: использовано 2 блоков из 3, кол-во символов 2361 (9%)
- https://remont-book.com/dizajn-studii-28-kv-m/: использовано 2 блоков из 7, кол-во символов 3573 (13%)
- https://skedraft.
ru/kvartira/28-kv-m: использовано 4 блоков из 7, кол-во символов 3633 (13%)
Дизайн-проект квартиры 28 кв. м, фото. Мадрид
Маленький офис в историческом центре Мадрида архитекторы превратили в необычную квартиру, где все функциональные зоны собраны в сложный паззл.
Небольшая 28-метровая квартира, которая до недавнего прошлого была офисным пространством, обладает двумя достоинствами — расположением в историческом центре Мадрида и хорошей высотой потолков (3,5 метра).
На всякие достоинства есть и свои минусы:
- здесь это небольшая площадь и наличие всего одного окна
- разделить квартиру на комнаты практически невозможно
При этом заказчик настаивал на отдельной спальне и был решительно против раскладывающегося дивана.
На фото:
Для пространства в 28 кв. м высота 3,5 метра – явно излишняя, она делает квартиру непропорциональной.
Тем не менее, пойти самым логичным путем и сделать мезонин здесь тоже было невозможно: такой высоты не достаточно для двух этажей. Решение архитекторов превратить половину квартиры в мини-лофт, разбитый на функциональные зоны высотой в 2 и 1,5 метра оказалось самым верным.
Информация об объекте:
Место: Мадрид
Метраж 28 кв. м
Год: 2003
Архитекторы: Beriot, Bernardini Arquitectos.
beriotbernardini.net
Фото: Yen Chen
На фото: Beriot, Bernardini Arquitectos
архитекторы
Архитекторы из Beriot Bernardini создали дизайн-проект квартиры, где обыграли все плюсы и минусы: они предложили половину помещения оставить как есть (здесь разместилась просторная светлая гостиная), а вторую половину превратить в двухъярусное пространство, «мини-лофт».
Общую высоту в 3,5 метра они разделили на ярусы в 2 и 1,5 метра, которые поделили между функциональными зонами.
Так, кухонная мебель, ванная, входная зона расположились в 2-метровом нижнем ярусе (справа), над которым разместилась кровать-лофт. С левой стороны верхний ярус выше — здесь расположена полноценная 2-метровая гардеробная, под которой находятся системы хранения, с примыкающей к ним лесенкой. Таким образом архитекторы добились, что у заказчика появилось удобное и достаточно уединенное спальное место, квартира получила необычное современное оформление, а ее полезная площадь увеличилась на 8,5 метров.
Дизайн-проект квартиры: планировка, аксонометрия и чертеж фасада «мини-лофта», который, по сути, представляет собой сложный предмет мебели, сделанный по эскизам архитекторов.
Практически весь «мини-лофт» был сделан в столярной мастерской из листов фанеры и смонтирован на объекте буквально за пару дней. Он занимает порядка трети общей площади квартиры и, как видно на фото, вмещает в себя все необходимые функциональные зоны: спальное место, гардеробную, прихожую и санузел.
За счет того, что каждая из этих функциональных зон связана просторным «окном» с большим и свободным пространством гостиной, не создается ощущения тесноты, несмотря на малые размеры каждой отдельной части «лофта».
Так, спальное пространство высотой всего 1,5 метра и шириной ровно с кровать не вызывает клаустрофобии благодаря тому, что просматривается насквозь с двух сторон. Одновременно за счет того, что находится наверху, оно не бросается в глаза и выглядит достаточно уединенно.
Кухонная мебель расположена под «спальным отсеком» и аккуратно прикрыта складной дверью. В закрытом виде все пространство «мини-лофта» крайне лаконично: простые формы, белый цвет, — классическая современная мебель.
Тем не менее, несмотря на компактные размеры, кухня совершенно функциональна, здесь поместились даже посудомоечная машина и СВЧ.
Небольшая лесенка, ведущая наверх, сделана в разбежку — это позволило сократить длину пролета.
Но это не единственная ее особенность…
Лесенку можно выдвинуть, и под ней — еще один просторный гардероб. А рядом большая система хранения.
По словам архитекторов, «окна» на фасаде спроектированного ими «мини-лофта» дают пространству глубину, которой часто не хватает в маленьких квартирах.
современная планировка студии-квартиры с балконом, интерьер с одним окном и с двумя окнами
Квартира-студия является доступным жильем для всех людей, так как имеет небольшую стоимость и при верном оформлении и обустройстве может порадовать привлекательным дизайном и эргономичной планировкой.
Варианты планировки
Крайне важно тщательно продумать проект, учитывая индивидуальные потребности каждого из жильцов.
Девушкам необходимо вместительная и удобная гардеробная, а мужчинам крайне важно грамотно оформить рабочую зону. Также не стоит забывать о зоне для отдыха. Если в студию 28 квадратных метров планирует заселиться семья с детьми, для каждого из ее членов необходимо обустроить место для личного пространства. Существует большое количество современных вариантов планировки и дизайна квартиры-студии 28 кв. м.
Их можно реализовать с помощью специалистов или же попробовать обустроить все самостоятельно. Есть несколько вариантов для разных типов студий.
С одним окном
Чаще всего одно окно располагается в студиях прямоугольной формы.
Они не слишком большие, но даже их можно сделать визуально просторными. В таких помещениях отсутствуют перегородки. Чтобы уютно и эргономично оформить студию, нужно использовать мебель и освещение.
Проход через всю студию должен быть прямым, здесь неуместны какая-либо мебель или другие препятствия. Если используются элементы крупных габаритов, их следует расставлять у одной стены. Последующая планировка должна быть сделана с учетом расположения стояка. В подобных помещениях часто санузел и стояк располагаются возле входа. В таком случае стоит поставить кухонный гарнитур к стене санузла. Использовать лучше П-образные модели с барными стойками.
С двумя окнами
В подобных студиях намного проще создать отдельные зоны, так как они являются просторными и воздушными благодаря поступлению большого количества солнечного света. Окна разделяются с помощью непрозрачных перегородок, что позволяет владельцу помещения получить 2 автономные зоны.
На подоконниках могут находиться бельевые шкафчики небольших размеров, но перед тем, как все оформить, нужно решить вопрос с размещением батарей отопления.
Также можно монтировать к батареям барные стойки или же разнообразные столы (обеденные и рабочие). Это позволит сэкономить пространство.
С балконом или лоджией
Если в студии имеются лоджия или же балкон, значит, ее владельцу очень повезло, так как данные элементы способны подарить ему повышенную комфортность проживания. Площадь 28 квадратных метров – небольшая, поэтому каждый лишний метр играет большую роль. Довольно часто балкон может переделываться в жилое помещение и вовсе присоединяться к комнате. Необходимо помнить, что подобные манипуляции достаточно сложны с технической точки зрения.
Из лоджии также можно сделать временную зону отдыха летом. Зимой туда помещают тумбочки и шкафчики, чтобы хранить разнообразные вещи и инструменты. Это позволит «разгрузить» жилую комнату.
Как расставить мебель?
Студию 28 квадратов можно зонировать посредством мебели, таким образом отделив место для сна от зоны для отдыха, гостиную от кухни. Вся обстановка должна располагать к отдыху. Стоит использовать диваны вместо кровати, так как они могут совмещать в себе несколько функций. Для меблировки лучше выбирать раскладные модели, которые можно было бы складывать для сохранения свободного пространства.
Кроме того, нужно еще позаботиться о зонах, в которых будут храниться различные вещи. Лучше обставить студию высокими шкафами до потолка, они являются более вместительными. Шкафы могут выполнять функцию перегородок или же устанавливаться возле стены.
Полки, размещающиеся так же до потолка, помогут максимально сохранить площадь.
Цветовые решения
Интерьер маленького помещения не следует «загружать» темными тонами, поэтому дизайнеры чаще всего используют светлые пастельные оттенки. Также можно расставить некоторые яркие акценты, которые привлекут внимание и добавят в дизайн свою изюминку и оригинальность.
Лучше всего выбирать глянцевые облицовочные материалы, так как они способны расширить пространство. Основным делают белый цвет, ведь его можно с легкостью сочетать с совершенно любыми расцветками. За счет подобного решения студия приобретает презентабельность и простор. Основную цветовую гамму следует выбирать с учетом выбранного стиля оформления.
Освещение и декор
Если человек создает современный дизайн, следует хорошо осветить гостиную (центральную) зону.
Другие участки могут быть оформлены с помощью рассеянного освещения. Не рекомендуется применять массивные и объемные люстры в квартирах небольшой площади. Вместо них используются маленькие и плоские светильники, позволяющие делать помещение более просторным.
Каждую из зон необходимо освещать отдельными источниками света. Рабочая зона может быть оформлена настольной лампой или настенным светильником, в спальне чаще всего используют ночники или бра.
Многоуровневое освещение – идеальный вариант для квартир-студий 28 кв. м.
Варианты оформления разных зон
Существуют основные правила оформления, которых следует придерживаться для создания интересного и приятного интерьера. Следует придерживаться единого дизайнерского стиля, к примеру: классический, лофт, скандинавский и другие.
Зонировать помещение можно различными способами. Для этого используют элементы декора, мебель, разнообразные половые покрытия. Рассмотрим способы оформления каждой из зон.
Прихожая
Для ее отделения применяются декоративные перегородки или напольное покрытие, не похожее на используемое в других зонах. В данном месте должно быть минимальное количество аксессуаров. Среди них можно увидеть полки для обуви, зеркала и крючки. Прихожая должна освещаться отдельно. В качестве мебели используются встроенные шкафы-купе с зеркальными сдвижными дверьми, которые вмещают в себя много вещей.
Лучше выбирать угловые шкафы, так как они помогают экономить площадь «комнаты».
Кухня и обеденная зона
Рабочая кухонная зона оснащается функциональным гарнитуром или встроенной мебелью, в которой находится бытовая техника.
В небольшой студии следует пользоваться лишь минимальным количеством оборудования, только тем, что необходимо. Полки и выдвижные ящики могут располагаться под расширенным подоконником. С помощью этого можно получить дополнительное место, в которое устанавливают бытовую технику или хранят посуду.
Обеденная зона отделяется от рабочей с помощью барной стойки. Это позволяет создавать большое количество мест для гостей и членов семьи. Кроме того, можно зонировать кухонное помещение перегородками.
Гостиная
В зоне отдыха размещают диван-трансформер. Подобная мебель позволяет создать дополнительное место для сна. Иногда допустимо использовать диван в качестве оригинальной перегородки. Телевизор располагается на стене, чтобы сохранить больше свободного пространства. На полу можно постелить мягкий ковер.
В гостиной часто устанавливаются многоуровневые потолки.
Спальное место
Зона для сна должна располагаться как можно дальше от санузла и кухни. Дизайнеры рекомендуют выделять спальное место подиумом, под которым можно оформить дополнительное место для хранения постельного белья или различных мелочей. При выборе кровати можно остановиться на вмонтированной в шкаф модели, которую нужно будет раскладывать лишь на время отдыха. Если помещение является высоким, спальное место следует организовать сверху, используя второй ярус. Дополнительный участок, остающийся под ним, может служить местом для работы или отдыха.
Спальня отделяется от других зон с помощью ширм, балдахинов, декоративных перегородок, текстильных занавесок и сквозных стеллажей.
Рабочее место
Рабочую зону можно организовать в спальной или гостиной.
Это делается посредством выдвижной и раскладной мебели. Важно сделать достойное освещение. Чтобы организовать комфортное рабочее пространство, можно расширить подоконник, который станет оригинальным и эргономичным столом. Это поможет получить хорошее освещение благодаря солнечному свету.
Если место под окнами нельзя использовать, следует выбрать компактную мебель, которая могла бы трансформироваться.
Красивые примеры
- Интересное оформление в фиолетовых тонах для девушек.
- Белый цвет позволил помещению быть воздушным и просторным.

- В оформлении можно применять и темные тона, комбинируя их с яркими акцентами.

- Вариант освещения.

- Идея оформления студии с балконом.
6 простых планов этажей для компактных домов площадью менее 400 квадратных футов
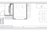
Крошечная жизнь в наши дни в моде, но у всех есть немного другое определение того, что такое крошечный дом на самом деле. Однако, если вы действительно хотите посвятить себя этому образу жизни, попробуйте уменьшить размер дома до 400 квадратных футов (37 квадратных метров) или меньше!
Вопреки тому, что вы думаете, в доме такого размера вполне возможно жить с комфортом. Все планы, представленные ниже, имеют площадь менее 400 квадратных футов, а некоторые из них даже имеют такие роскошные детали, как гардеробные и большие камины.
Нравится Планы этажей для небольших домов для большего Этот дизайн студии от Houseplans, занимающий 300 квадратных футов (28 квадратных метров), станет отличным домом для холостяков.
Большую часть дома занимает большая комната с уютной дровяной печью, спрятанной в маленьком уголке с правой стороны. Г-образная кухня расположена в переднем левом углу дома, а ванная комната с душем — прямо за ней. Этот очаровательный деревенский дизайн от Family Home Plan имеет площадь 360 квадратных футов (33 квадратных метра) и имеет большую крытую веранду для дополнительного жилого пространства.Внутри дома студия имеет небольшую кухню слева и большой каменный камин справа. В задней части дома достаточно места для кровати, а рядом с этой спальной зоной находится ванная комната с душем. Этот симпатичный домик от Architectural Designs занимает 37 квадратных метров. Парадная дверь ведет в главную гостиную с покатым потолком и кухней с правой стороны. Спальня находится в задней части дома и оборудована гардеробной.Ванная комната находится рядом со спальней, и в нее можно попасть через спальню или главную гостиную. Двойные французские двери в спальне ведут на задний двор. Этот дизайн от Houseplans площадью 399 квадратных футов (37 квадратных метров) идеально подойдет для длинного узкого участка.
Большой внутренний дворик проходит по всей длине фасада дома и огибает правую сторону. В дом можно войти либо через раздвижные стеклянные двери справа, либо через дополнительную дверь спереди.Гостиная открытой планировки и кухня-столовая находятся в правой части дома, и в ней много встроенных хранилищ. Слева расположены спальня и ванная комната с ванной. Этот крошечный дом от Floorplans имеет площадь 321 квадратный фут (30 квадратных метров) и может похвастаться большим двойным гаражом со встроенными шкафами для хранения вещей. Входная дверь под крытой верандой открывается прямо в гостиную. Справа за гостиной находится небольшая кухонная зона, а напротив — ванная.Спальня занимает заднюю часть дома. Нравится Планы этажей для небольших домов для большего Эта студия от Houseplans, занимающая ровно 400 квадратных футов (37 квадратных метров), кажется больше, чем она есть, благодаря сводчатым потолкам и множеству больших окон. Лестница с правой стороны ведет на большую террасу, где двойные двери открываются в дом.
Гостиная находится в передней части дома, а дверь ведет на небольшой балкон Джульетты.Кухня находится справа от входной двери; встроенная обеденная скамья означает, что вам не нужны дополнительные кухонные стулья, если они вам не нужны. Встроенная кушетка находится в задней части дома за кухней, а ванная комната с ванной находится рядом с ней слева.Идеально организованная микроквартира площадью 28 квадратных метров
Эта современная микроквартира — отличный пример того, как в небольшом жилище может быть все
Современные дизайнеры и архитекторы демонстрируют чудеса изобретательности, украсив небольшие помещения, чтобы вместить все необходимое и сделать пространство функциональным .Сегодня мы живем еще в одном таком доме: Джордж находится среди нескольких одинаковых квартир-студий, в которых в 1950-х годах размещались медсестры, в Фицрой, Мельбурн, Австралия.
Эта микроквартира, занимающая всего 28 квадратных метров, нуждалась в капитальном ремонте, чтобы соответствовать современным стандартам.
Все внутренние стены были сняты и установлена новая стальная балка, открывшая план проекта практически для чего угодно. Это практичное решение, которое сделает крошечный дом более функциональным и принесет больше света внутри.
Новое жилое пространство занимает большую часть квадратного метра, заблокировано от входной двери коридором с деревянным складом. Та же легкая фанера продолжается и в гостиной с плавающим многоцелевым блоком, который за считанные минуты переходит от большой зоны отдыха для восьми человек к кровати, на которой могут разместиться двое. Встроенное хранилище окружает его и скрывает вещи, когда они не используются. Пространство привлекательно благодаря белой кирпичной стене и темным полам, контрастирующим со светлой фанерой, которую можно увидеть по всей квартире.
С другой стороны стены для хранения вещей находится полностью черная кухня, в которой есть проходное отверстие, через которое проходит свет. Ванная комната облицована черной плиткой от пола до потолка с красной заливкой для контраста и стильного мужского вида.
Вдохновляйтесь и не стесняйтесь воровать идеи!
Спальное место может быть преобразовано в гостиную, а место для хранения помещается под кроватью и в шкафах рядом с кроватью
Белые стены увеличивают пространство, а светлая фанера продолжает эту идею, добавляя текстуру
Вы можете увидеть несколько полок на стене, есть рабочее пространство, обшитое деревом, которое скрывает музыкальный инструмент.
Интерес к пространству добавляет белая кирпичная стена, темные деревянные полы, контрастирующие со светлой фанерой
полностью черная кухня с проходным окном в комнату, чтобы было удобнее есть и пить.
Черные поверхности в сочетании со светлой фанерой — отличная идея для создания стильного и контрастного пространства
Ванная комната облицована черным плитка и красная затирка для создания стильного мужского образа
Планов домов до 100 квадратных метров: 30 полезных примеров
Планов домов до 100 квадратных метров: 30 вариантов использования Примеры
© ArchDaily ShareShare-
Facebook
-
Twitter
-
Pinterest
-
Whatsapp
-
Почта
Или
https: // www.
archdaily.com/893170/house-plans-under-100-square-meters-30-useful-examplesЗадача проектирования дома с ограниченным бюджетом и пространством вместе с важной обязанностью правильно реагировать на требования пользователя, иногда является одной из самых сложных и мотивирующих задач, с которыми может столкнуться архитектор. Как можно наиболее эффективно использовать пространство? Как избежать потерь материала? Как вы прогнозируете возможное расширение дома в будущем? И как разработать простой дизайн, который также принесет пользу его обитателям?
Чтобы помочь вам в этом процессе, мы просмотрели архивы наших проектов, чтобы выбрать 30 домов, которые предлагают интересные архитектурные решения, несмотря на их площадь менее 100 квадратных метров.
70 квадратных метров / ≈ 750 квадратных футов
Casa Lampa / abarca + palma
Casa Lampa / abarca + palma. Изображение © Андрес Матурана, Casa Lampa / abarca + palmaДом Рио Бонито / Карла Хуасаба
Casa Rio Bonito / Карла Хуасаба.
Изображение © Нельсон Кон Casa Rio Bonito / Карла Хуасаба Tinhouse / Rural Design
Tinhouse / Rural Design. Изображение © Дэвид Барбур Tinhouse / Rural DesignДом 28 / studio edwards
House 28 / studio edwards.Изображение © Тони Горсевски Дом 28 / studio edwardsCasa BSO / BLOS Arquitectos
Casa BSO / BLOS Arquitectos. Изображение © Гонсало Вирамонте, Casa BSO / BLOS ArquitectosДом Лоба / Пезо фон Эллрихсхаузен
Дом Лоба / Пезо фон Элльрихсхаузен. Изображение © Pezo von Ellrichshausen Casa Loba / Pezo von EllrichshausenFiscavaig / Rural Design
Fiscavaig / Rural Design. Изображение © Rural Design Fiscavaig / Rural DesignПалаточный дом / Архитектура Криса Тейта
Палаточный дом / Архитектура Криса Тейта.Изображение © Саймон Девитт Палаточный дом / Архитектура Криса ТейтаМикро-кластерные коттеджи / Райульф Рамстад Аркитектер
Микро-кластерные домики / Райульф Рамстад Аркитектер.
Изображение © Lars Petter Pettersen Micro Cluster Cabins / Reiulf Ramstad Arkitekter LESS House / H.a
LESS House / H.a. Image © Quang Dam LESS House / H.a80 квадратных метров / ≈ 860 квадратных футов
Тихий дом / АРТЕЛАБО архитектура
Тихий дом / АРТЕЛАБО архитектура.Изображение © Мари-Каролин Люкат Тихий дом / АРТЕЛАБО архитектураГородской коттедж / CoLab Architecture
Городской коттедж / CoLab Architecture. Изображение © Стивен Гуденаф Городской коттедж / CoLab ArchitectureОтдаленный дом / Фелипе Ассади
Casa Remota / Фелипе Ассади. Изображение © Фернандо Альда, Casa Remota / Фелипе Ассади,Переработка жилищ / Хуан Томе
Переработка жилищ / Хуан Томе. Изображение © Bicubik Fotografía de Arquitectura Recycling Housing / Juan TohmeTermitary House / Tropical Space
Termitary House / Tropical Space.Изображение © Хироюки Оки, Termitary House / Tropical SpaceMckenzie House / Atelier Workshop
Casa Mckenzie / Atelier Workshop.
Изображение © Пол Макреди, Casa Mckenzie / Atelier Workshop Tepoztlán Lounge / Cadaval & Solà-Morales
Bungaló LMM / Cadaval & Solà-Morales. Изображение © Sandra Pereznieto Bungaló LMM / Cadaval & Solà-MoralesДом Коцци / Germán Müller
Casa Cozzi / Germán Müller. Изображение © Федерико Кайроли Casa Cozzi / Germán MüllerMA House / PYO arquitectos
Casa MA / PYO arquitectos.Изображение © Imagen Subliminal Casa MA / PYO arquitectosДом в саду / ŠÉPKA ARCHITEKTI
Дом в саду / ŠÉPKA ARCHITEKTI. Изображение © Tomáš Malý Дом в саду / ŠÉPKA ARCHITEKTI90 квадратных метров / ≈ 970 квадратных футов
MAJO House / Estudio 111 Arquitectos
Casa MAJO / Estudio 111 Arquitectos. Изображение © Йордана Андаур, Casa MAJO / Estudio 111 ArquitectosweeHouse / Alchemy
weeHouse / Alchemy. Изображение © Джеффри Уорнер, weeHouse / AlchemyMarindia House / MASA Arquitectos
Casa Marindia / MASA Arquitectos.
Изображение © Федерико Кайроли Casa Marindia / MASA Arquitectos Дом для детей / GRAD arkitekter
Дом для детей / GRAD arkitekter. Изображение © Karin Björkquist Детский дом / GRAD arkitekterYard House / alberto facundo _arquitectura
Casa Patio / alberto facundo _arquitectura. Изображение © German Cabo Casa Patio / alberto facundo _arquitecturaКирпичный дом / Ventura Virzi arquitectos
Casa de Ladrillos / Ventura Virzi arquitectos.Изображение © Федерико Кулекджиан, Casa de Ladrillos / Ventura Virzi arquitectosGaspar House / Alberto Campo Baeza
Casa Gaspar / Alberto Campo Baeza. Изображение © Hisao Suzuki Casa Gaspar / Альберто Кампо БаезаРетрит в Хосе Игнасио / MAPA
Refugio en José Ignacio / MAPA. Изображение © Леонардо Финотти, Refugio en José Ignacio / MAPAАлюминиевая кабина / JVA
Алюминиевая кабина / JVA. Image © Nils Petter Dale Алюминиевая кабина / JVAДом в Фукая / Нобуо Араки
Дом в Фукая / Нобуо Араки.
Image © Shimizu Ken House in Fukaya / Nobuo Araki Примечание: эта статья была первоначально опубликована 24 апреля 2018 года и обновлена 22 июня 2020 года.
Благодаря многофункциональной мебели эта небольшая квартира в Милане кажется намного больше, чем это
С двумя предметами многофункциональной мебели, эта квартира площадью 28 квадратных метров в Милане может иметь гостиную, столовую, мастер и студию
Studio WOK превратила небольшую квартиру в Милане, Италия, в нечто гораздо большее.Реконструированная квартира площадью всего 28 квадратных метров под названием OCS Batpin Flat впечатляет своей функциональностью, адаптируемостью и умным использованием ограниченного пространства.
«В этом проекте задача дизайна заключалась в том, чтобы придать маленькой квартире площадью 28 кв. М жилой комфорт по сравнению с большой», — пояснили архитекторы.
Цели и решение
Помимо увеличения площади, еще одной ключевой задачей реконструкции было использование самого главного актива квартиры: террасы площадью 10 квадратных метров.
Для того, чтобы маленькая квартира функционировала как большее пространство, по обе стороны от главной комнаты разместили два предмета многофункциональной мебели из фанеры.
Основная жилая площадь
Справа есть место для двух шкафов для одежды, книжного шкафа, отделения для кондиционера и кровати с полностью убирающимися колесами, которая выполняет роль дивана.
Слева большая стена, обшитая деревянными панелями, скрывает двери, ведущие в ванную комнату и кухню, предлагает больше места для хранения вещей, а в центре находится раскладная двуспальная кровать.
В течение дня гибкость, обеспечиваемая многофункциональными предметами мебели, превращает основное жилое пространство в гостеприимную гостиную, столовую, кабинет и, в конечном итоге, в главную спальню.
Зоны обслуживания
Служебные помещения, кухня и ванная, были спроектированы таким образом, чтобы оставить как можно больше места для основного помещения.
Эти служебные зоны, компактно расположенные по углам небольших квартир, были отделаны в яркой бирюзово-голубой цветовой палитре, что делает их смелыми и стильными.
Фотография: Федерико Вилла
Вы бы купили «микродом»? — Который? Новости
Дом англичанина может быть его замком, но для постоянно растущего числа покупателей это может означать недвижимость менее 37 квадратных метров — или размером с вагончик. Высокий спрос, стремительно растущие цены и изменения в образе жизни привели к росту микро-собственности — но что это означает для покупателей сегодня?
Рынок недвижимости Великобритании может похвастаться растущим числом домов менее 37 кв.м, минимальной площади студии по национальным стандартам.В 2016 году было построено почти 8000 новых микродомов, что является рекордным показателем за всю историю, по данным Which? анализ данных Земельного кадастра.
Но поскольку девелоперы спешат использовать более гибкие законы планирования и делят офисные блоки на дома, потенциальные покупатели должны быть осторожны: наши исследования показывают, что микро-дома не обязательно растут в цене, как их более крупные аналоги, в то время как некоторые ипотечные кредиторы не будут.
ссужать на них вообще.
В рамках этого специального расследования мы исследуем:
Насколько распространены микродома?
«Микрообъект» не имеет строгого определения, но, как правило, этот термин относится к объектам с площадью менее 37 кв.м, что является минимальным размером студии в соответствии с национальными техническими жилищными стандартами правительства.
Однако эти стандарты не имеют обязательной юридической силы. В случае нехватки жилья застройщики могут обратиться к местным властям с просьбой о разрешении на строительство домов меньшего размера, а советы не могут отказывать в предоставлении недвижимости только на основании размера.
В 2013 году правительство ввело так называемые «Разрешенные права на застройку» (PDR), которые позволили строителям превращать офисы в жилые дома без подачи заявок на планирование.
С тех пор количество новых микрорайонов резко возросло:
Девелоперы покупали заброшенные офисные помещения, такие как это в Кройдоне, и разделяли их на множество небольших студий и квартир с одной спальней:
Обменный суд в Кройдоне, раньше.
….. и после переоборудования в квартиры
Но эта тенденция не ограничивается пригородом Лондона.
Наше исследование показало, что большое количество микрорайонов строится в городских районах, таких как Лестер, Ливерпуль, Кембридж и Бристоль:
& lt; a href = ‘#’ & gt; & lt; img alt = ‘microhomes’ src = ‘https: & amp; # 47; & amp; # 47; public.tableau.com & amp; # 47; static & amp; # 47; images & amp; # 47; Mi & amp; # 47; Microhomes & amp; # 47; microhomes & amp; # 47; 1_rss.png ’style =’ border: none ’/ & gt; & lt; / a & gt; Термин «микропомощь» охватывает широкий спектр домов, в том числе плохо продуманные переоборудованные квартиры с туалетом на кухне или душем в гостиной. Но многие из новых объектов недвижимости, созданных в соответствии с Разрешенными правами на застройку, используют пространство разумным образом, по словам разработчиков, которые говорили с Which ?.
Гвин Робертс из жилищной благотворительной организации BRE говорит, что размер менее важен, чем инновационный и практичный дизайн: «Маленькие дома, которые плохо расположены, имеют плохую внутреннюю среду и обычно плохо спроектированы и построены, не будут соответствовать [нашим стандартам].’
«[Однако] многие микроквартиры удачно расположены, имеют общие помещения внутри и снаружи, а также хорошо спроектированы для вентиляции, звукоизоляции и многого другого».
Мартин Скиннер, исполнительный директор Inspired Homes, предполагает, что молодые покупатели, в частности, склонны вести образ жизни, соответствующий небольшим квартирам, ссылаясь на «рост экономики совместного использования и увеличение количества вещей, таких как коллекции музыки и фильмов, хранящихся в облаке». Он говорит, что многие из своих свойств PDR выбрали «гибкие мебельные решения», включая столы, которые трансформируются в обеденные.
- Вы нашли дом своей мечты — что теперь? Прочтите наше руководство по составлению предложения на дом или квартиру.

Растут ли стоимость микропомещений?
Нетрудно понять привлекательность для некоторых покупателей, особенно если учесть, что рост цен в некоторых регионах уводит многих людей с рынка.
Часто микропомещения предлагают более дешевую альтернативу обычным домам. Согласно данным Земельного реестра, в 2016 году недвижимость в Лондоне менее 37 кв. М стоила всего 279 000 фунтов стерлингов.Хотя это и не совсем дешево, это менее половины средней цены лондонского дома, проданного за тот же период (580 000 фунтов стерлингов).
Хотя микродома — более дешевый способ попасть на карьерную лестницу, важно учитывать, будут ли со временем расти в цене ваши инвестиции.
В рамках нашего исследования мы объединили информацию о размерах собственности, полученную от Министерства энергетики, с данными о ценах на дома из Земельного реестра Ее Величества, охватывающими почти 3 миллиона объектов. Затем мы сравнили среднюю цену на недвижимость, проданную в 2016 году, со средней ценой, проданной в период с 2013 по 2015 год, чтобы измерить рост цен на дома разного размера.
Наш анализ показал, что объекты площадью от 50 до 120 кв.м показали лучший рост цен за этот период.
Однако дома меньше национальных стандартов минимальной площади не работали так хорошо; Рост цен на недвижимость менее 37 кв.м составил 6,9% по сравнению с 8,7% для домов большей площади. И это несмотря на то, что почти две трети этих небольших объектов недвижимости расположены в Лондоне и на Юго-Востоке, где в последние годы наблюдается значительный рост цен на жилье.
Эта тенденция сохраняется и в отношении даже более мелких домов: количество домов менее 30 кв.м выросло всего на 5.4% в стоимости в период с 2013-15 по 2016 год.
В Лондоне у микро-домов дела обстоят немного лучше: объекты площадью менее 37 кв. М выросли на 11,8% в период с 2013-15 по 2016 год. Однако это все еще намного меньше, чем 14,5% -ный рост для всех остальных объектов недвижимости в столице.
- Покупаете свой первый дом? Прочтите наше руководство о том, как накопить на свой первый ипотечный депозит
Насколько велик 37 кв.
м?У британцев одни из самых маленьких домов в Европе, в среднем 76 кв. М — это кусок больше, чем корт для игры в сквош (62.4 кв.м). Для сравнения: согласно исследованию, опубликованному в 2014 году компанией Find Me A Floor, средний размер недвижимости в Дании составляет 137 кв.м.
Национальные стандарты площади предполагают, что размер жилого помещения для одного человека не может быть меньше 37 кв.м. Это примерно такое же внутреннее пространство, как у тележки для труб, и немного больше, чем средний номер Travelodge, который составляет 28 кв.
Тем не менее, мы обнаружили много недавно переоборудованных офисных комплексов площадью 16 кв.м. Для справки, это меньше, чем размер ринга для борьбы сумо.
Мы нашли одну студию в Бренте площадью всего 8 кв. М — более чем на 3,5 кв. М меньше, чем средняя парковка в Великобритании (11,5 кв. М), и всего на 1 кв. М больше, чем тюремная камера. Дом с тремя спальнями был преобразован в шесть квартир-студий, но в 2015 году муниципалитет Брента приказал снова превратить застройку в дом.
Кто покупает микро-недвижимость?
Микродома дешевле, обычно ближе к центру города и часто слишком тесноваты для семей с детьми.
По этим причинам неудивительно, что, согласно данным Inspired Homes, их в основном покупают впервые. CE Мартин Скиннер говорит, что «эти покупатели, как правило, одинокие профессионалы в возрасте от тридцати до пяти лет или молодые пары в возрасте от двадцати до двадцати лет, которые совмещают зарплаты, чтобы покупать вместе. У нас также есть много братьев и сестер, которые объединяются, чтобы купить две кровати.
Тем не менее, он добавляет, что инвесторы получают первые деньги, и многие делают резервы заранее, чтобы получить выгоду от роста капитала.
На самом деле, множество микропомещений указано на порталах недвижимости как «Возможности для инвесторов», предлагая «гарантированную» валовую доходность от аренды:
Не подлежат ли микропомещения залогу?
Почему микропомощи не растут в цене, как объекты обычного размера? Простая причина может заключаться в том, что многие покупатели не хотят жертвовать пространством ради удобства.
Другой причиной, однако, может быть возможность занять их для их покупки. Если большинство покупателей не могут легко получить ипотеку на недвижимость, это может ограничить рост цен в долгосрочной перспективе.
Мы спросили шесть основных поставщиков ипотечных кредитов, есть ли у них особые критерии кредитования небольших домов.
Хотя HSBC не дал комментариев, Lloyds Bank, Barclays и Santander заявили, что у них нет определенного ограничения на размер, но они предоставляют ссуды на основе профессиональной оценки. Например, Barclays заявил, что требует, чтобы переоборудованные квартиры были разработаны с «комнатами разумного размера», но сказал, что это «зависит от профессионального мнения оценщика».
Однако Nationwide и RBS не будут сдавать в кредит недвижимость с площадью менее 30 кв.RBS добавило, что небольшие объекты недвижимости подвержены риску «ограниченного спроса» и «неустойчивых цен при перепродаже».
Дэвид Блейк из какого? Консультанты по ипотеке призвали покупателей провести свое исследование, заявив: «Я бы посоветовал любому, кто думает о покупке небольшой квартиры, поговорить с независимым консультантом по ипотеке, чтобы понять свои варианты, но также подумайте о возможности перепродажи собственности и о вероятности спроса. чтобы оставаться сильным для этого типа собственности в будущем »
- Копите на свой первый дом? Прочтите наше руководство о том, сколько депозита вам понадобится для ипотеки
Будущее собственности?
Современные удобства и продуманные решения в области пространства делают микродома сегодня очень далекими от старых городских студий, где можно было дотронуться до туалета, не вставая с кровати.
Спрос на дешевое жилье в центре города в сочетании с ростом цен привели к увеличению предложения этого типа недвижимости. Но еще неизвестно, приносят ли они реальную прибыль владельцам — или же они окажутся домами, в которых люди действительно стремятся жить.
Квартира-студия: трансформируемая мебель
| Редакция Designbest
H
Как прекрасно было бы жить в уютной однокомнатной квартире, где можно есть, спать, работать и развлекать друзей! Здесь, как говорится, кроется хитрость.Для StudioWok, архитектурного бюро, курировавшего реконструкцию этого крошечного чердака в Милане, этот проект был настоящим дизайнерским вызовом. И эти 28 кв.м были успешно превращены в уютную квартиру.
Квартира-студия, какой она выглядит, когда вся трансформируемая мебель разложена. Напротив балкона остекление от пола до потолка максимально открывает пространство. Белый пол и потолок отражают свет; это создает светлое пространство.
Раскладная кровать спрятана между дверями в ванную и кухню (изображение слева). Напротив, под шкафами, раскладывающийся диван-кровать на колесиках. Справа вы можете мельком увидеть входную дверь.
Коммуникации (ванная и кухня) дизайнеры сгруппировали на одной стороне; это освобождает место для мобильной мебели. Здесь боковые стены, облицованные панелями из сосновой фанеры батипин, фактически являются «активными» компонентами.В них скрывается вся мебель, мобильная или стационарная: раскладная двуспальная кровать, диван-кровать на колесиках, раздвижные двери для ванной и кухни, шкаф и кондиционер.
На этом снимке, сделанном у входа, изображена квартира-студия утром с раскладной двуспальной кроватью и столом, накрытым для завтрака.
Во время обеда кровать складывается, освобождая место для стола.А стол, в свою очередь, уступает место дивану-кровати.
Идеально подходящая для своего молодого владельца, эта конвертируемая квартира-студия одновременно урбанистична и динамична, а также спроектирована с учетом общей стоимости. Сделанная на заказ мебель сочетается с предметами из Ikea, а также с некоторыми востребованными находками. Ключевым словом здесь является гибкость, квартира, которая мгновенно меняет облик, превращаясь из комнаты для медитации в яркую гостиную для вечеринок с друзьями. Немного имеет большое значение!
Дизайн-проект
Ремонт однокомнатной квартиры
Расположение: Милан, Италия
Дизайн интерьера и поставка мебели:
studio wok
Via Raffaele Parravicini 16, Милан, Италия
02 8407 006
Эл. Почта: info @ studiowok.com
Веб-сайт: www.studiowok.com
Строительный подрядчик: Edil 2000 snc
Мебель на заказ: Arredo 90 srl
Окна и двери:
Fratelli 906702 Rusconi Фотографии:
Предоставлено студией wok
Авторские права Federico Villa
Кондоминиум площадью 28 кв.м в Тагуиге с развлечениями, индустриальными штрихами
Если у вас есть опыт в дизайне, вы работали в популярном журнале по приютам, а в настоящее время пишете для международного домашнего сайта, к кому вы обратитесь за помощью при проектировании своей первой квартиры дома в Маниле?
Карла Рей нашла своего хорошего друга Twenty Muñoz из Bespoke Design Studio.Карла, координатор рынка из Сиднея, имеющая степень по ландшафтной архитектуре и также пишущая на популярном веб-сайте о приютах Houzz.com, описывает свой стиль как «винтажно-индустриальный». Свои пожелания в отношении стиля она сообщила Twenty на ранних этапах проектирования квартиры.
Это было вдохновлено RL!
«На самом деле я отправила Двадцать изображений некоторых объектов Real Living на небольшие квартиры и рассказала ей, что мне в них понравилось», — делится Карла.«[Примечательно], что она [Двадцать] хотела привнести некоторые« мягкие »элементы в стиле kasi masyado daw pang-guy yung , который я предпочитаю». Она доверилась Twenty своим предложением, добавив: «Как человек, имеющий опыт ландшафтной архитектуры, alam ko yung чувствует себя a lahat dinidikta… eh sana’ di na ako naghire ng designer, di ba? Ха-ха. »
РЕКЛАМА — ПРОДОЛЖАЙТЕ ЧТЕНИЕ НИЖЕ
ПРОДОЛЖАЙТЕ ЧТЕНИЕ НИЖЕ
Рекомендуемые видео
Индустриальная тема для технической задачи
«Первоначальная задача заключалась в создании, по словам Карлы,« андрогинного образа », который соответствовал ее личным вкусам, но также потому, что дизайн должен был понравиться как мужчинам, так и женщинам, поскольку он собирался сдавать в аренду, «Двадцать» объясняет.«На решение перейти на промышленное производство в значительной степени повлияла проблема с системой кондиционирования … метод установки, как того требует разработчик, приведет к тому, что дренажные трубы будут расположены внутри устройства, а не снаружи на балконе».
РЕКЛАМА — ПРОДОЛЖАЙТЕ ЧТЕНИЕ НИЖЕ
Еще одна проблема заключалась в снижении затрат, поскольку Карла намеревалась не тратить слишком много на квартиру, чтобы она могла сдать его в аренду по справедливой цене. Конечным результатом является уютный кондоминиум с хорошо спланированными многозадачными пространствами, такими как гостиная, которая может быть преобразована в столовую.В интерьере много индустриальных штрихов, как видно из освещения и мебели, но достаточно очаровательных и причудливых акцентов, чтобы смягчить стиль. «Мне нравится описывать это как своего рода диалог между мужским и женским началами», — говорит Twenty.
.




Поэтому необходимо тщательно продумать размещение и разделение логических зон.

Это предоставит возможность (по мере необходимости) преобразовать одну зону в другую.

На этом этапе еще можно вносить незначительные корректировки, решайте все возникающие проблемы по ходу строительных работ.
кв. применяют минимализм, арт-деко, дизайн в современном и скандинавском направлении, лофт. Судя по фото, эти стили лучше всего вписываются в малогабаритное пространство.
ru/interer/oformlenie-dizajna-studij-28-kv-m-v-sovremennom-stile/: использовано 2 блоков из 10, кол-во символов 2301 (8%)
ru/kvartira/28-kv-m: использовано 4 блоков из 7, кол-во символов 3633 (13%)



