Планировка однушки в хрущевке: планировки однокомнатной хрущевки с размерами (14 вариантов)
80 идей планировки однокомнатной квартиры в хрущевке — INMYROOM
Любой владелец квартиры, в независимости от количества квадратных метров и комнат, старается сделать ее как можно удобней. Довольно трудной задачей является сделать это в небольшой однокомнатной хрущевке или студии, но все-таки возможной при применении верных и подходящих стилей. С таким подходом можно сделать не только удобную, но и стильную, изящную квартиру.
Планировка однокомнатной квартиры – это очень кропотливая и сложная работа. Но даже в этом случае можно подобрать наиболее удачные варианты. В первую очередь необходимо все распланировать таким образом, чтобы у каждого из проживающих в квартире было свое личное пространство. Для этого часто применяется распределения комнат на зоны.
Планировка и зонирование
При выполнении планировки однокомнатных квартир,
особенно в хрущевке или студии, часто проводят распределение пространства на
зоны. При этом следует подбирать всю отделку и мебель только светлых тонов.
На сегодняшний день большой популярностью пользуется бежевый оттенок, который сделает интерьер студии или хрущевки утонченным, и в то же время достаточно простым. Для визуального увеличения пространства можно остановить свой выбор на отделке в скандинавском стиле. Стоит заметить, что при выборе точечного верхнего освещения также пространство станет гораздо просторнее.
Обратите внимание на то, что при разделении квартиры на функциональные зоны, нельзя обойтись без арок, некоторых перегородок, больших стеллажей и своеобразных подиумов. При умелом использовании всех перечисленных элементов может получиться уютная и функциональная квартира, которую сложно будет отнести к хрущевке, при этом площадь ее вовсе не изменится.
Также,
при выполнении планировки однокомнатных
квартир стоит уделить внимание и зеркалам, которые значительно расширяют
пространство и добавляют в него много света. Большие зеркала можно применить и
для выделения одной из зон.
Рассмотрите некоторые фото примеры планировки однокомнатных квартир по типу «хрущевки» и «студии».
Цветовая гамма
Цвет играет очень важную роль при отделке любой квартиры, неважно хрущевки или студии. Всем уже давно известно, что светлые тона являются прекрасным отражателем света, и поэтому благодаря им, пространство становиться в визуальном восприятии намного просторнее.
Очень важно знать, что теплые оттенки зрительно приближают элементы. К таким относятся оранжевый, желтый и красный тона. А вот у холодных оттенков, наоборот, обратное действие, которое визуально отдаляет элементы. К холодным тонам относятся синий, лиловый и зеленый. Именно поэтому, при наличии небольшого пространства стоит отдавать предпочтение холодным светлым оттенкам.
Часто применяют и такой способ зрительного увеличения пространства, как использование обоев с полосами, расположенными горизонтально либо вертикально. Их эффект зрительного увеличения хорошо заметен на фото.
Выбор мебели
Планировка однокомнатной квартиры также подразумевает
правильный выбор мебели, который должен быть в соответствии с некоторыми
факторами, такими как мобильность, малогабаритность и многофункциональность.
Нельзя в хрущевке использовать объемные шкафы. Приспособления для хранения
личных вещей стоит распределить по всей площади. Небольшие шкафчики и полки для
хранения всяческих мелочей можно установить в прихожих либо коридорах.
Прекрасно будут подходить для хрущевки предметы мебели со встроенными колесиками. Также большое значение имеет материал, из которого изготавливается мебель. Наиболее удачно в хрущевке будет смотреться мебель в светлых пастельных тонах с глянцевыми светоотражающими фасадами. Здесь неплохо смотрится поверхность из стекла либо из прозрачного пластика.
Расширение пространства Для того чтобы сделать помещение несколько шире в визуальном восприятии, стоит выполнять отделку, применяя только светлые тона, такие как охра, белый, слоновая кость, древесный, пастельный.
Чаще
всего при оформлении хрущевки специалисты используют скандинавский стиль,
поскольку он является наиболее подходящим из-за преобладания в нем белого
цвета. Для данного стиля используется мебель, выполненная только в светлых
оттенках и большое число различных светильников, которые добавляют помещению
некоторую изысканность и особую привлекательность.
Обратите внимание на планировку однокомнатной квартиры фото, которой представлено ниже.
Кухня
Наиболее важным предназначением кухни является приготовление пищи. Обеденный стол можно поставить в другой комнате. В кухонном помещении размещаются только основные рабочие поверхности, плита и холодильник. При желании оставить стол все-таки на кухне, стоит остановить свой выбор на форме овала либо небольшого круга.
При наличии хорошо функционирующей вытяжной системы можно обойтись без межкомнатных дверей, либо установить своеобразные выдвижные двери. Шторы либо жалюзи должны обязательно быть в светлых тонах, то же самое касается и стен.
Мебель должна быть в одной цветовой гамме со стенами. Для кухни в хрущевке или студии можно использовать мебель-трансформер, которая разбирается и собирается при необходимости. Для кухни с небольшими параметрами отлично подойдет люстра больших размеров, оформленная также в светлых тонах.
Санузел
Чаще
всего хрущевки не отличаются раздельной ванной и туалетом, в обратном случае –
для экономии пространства стоит совместить две комнаты в одну.
Для того чтобы значительно сэкономить пространство в ванной комнате существует некоторое количество маленьких хитростей:
- Расположение стиральной машины под умывальником. В таком случае выполняется подбор специальной раковины, у которой отсутствует ножка. При этом раковина размещается на достаточно высоком уровне;
- Еще один вариант, машинку разместить на кухне, но в хрущевке она также обычно маленького
размера;
- Установка небольшой душевой кабины
вместо ванны;
- Радиатор в ванной стоит заменить на
полотенцесушитель, который не займет большое количество пространства.
Квартира-студия
Планировка квартиры студии заключается в разделении всего пространства на несколько зон. При небольшом количестве проживающих – это четыре зоны:
- Зона для сна;
- Зона для приема гостей;
- Зона для приготовления пищи;
- Зона для работы.
При
планировке студии стоит придерживаться некоторых правил:
Разделение на зоны можно проводить с помощью света, а точнее его оттенков. Чаще
всего наиболее яркое освещение относится к зоне для гостей, а самое рассеянное
– к зоне сна. №2. Спальную зону можно обосновать на небольшом возвышении, в котором будут предусмотрены для удобства определенное количество ящиков.
№3. Распределение зон студии можно выполнять также с помощью различного напольного покрытия.
№4. Разделение кухонного пространства и гостиной от зоны отдыха можно выполнить с помощью специальных этажерок. Для этой же цели можно применить барную стойку.
№5. Также можно использовать мебель, способную трансформироваться. Для таких целей отлично подойдет шкаф-кровать.
Хрущёвка 30 кв. м
Помещение
с такими параметрами обычно бывает в хрущевке. Планировка однокомнатной хрущевки является не самой легкой
задачей. Обычно
дизайнеры рекомендуют хрущевки разделять на несколько зон. С планировкой стоит
постараться, поскольку места должно хватить на все необходимое.
Для визуального увеличения крошечной хрущевки стоит отдавать предпочтение только светлым тонам. Также не помешает размещение зеркальных поверхностей, которые добавят в помещение дополнительный свет.
В хрущевке не стоит использовать большое количество украшений и аксессуаров. И желательно также применять трансформирующуюся мебель. В качестве кровати можно выбрать угловой диван, как это представлено на фото.
Однушка более 40 кв. м
Данный вариант хрущевки будет замечательным для молодой семьи с ребенком. В такой квартире нежелательно использовать объемные шкафы и массивные кровати. Сюда отлично впишутся шкафы-купе, этажерки до самого потолка, угловые диваны и другая подобная компактная мебель.
В варианты
планировки однокомнатных квартир отлично вписываются компактные раздвижные
двери. К достоинствам таких дверей относят экономичность пространства. Для небольшого
помещения часто применяются складывающиеся двери, которые по принципу действия
напоминают гармошку.
Интерьер для семьи с ребенком
Для того чтобы разместить в небольшой хрущевке семью с ребенком стоит постараться разделить одно помещение на две комнаты, потому что только так все смогут себя чувствовать наиболее комфортно.
Для разделения помещения можно применять, как и различные шторы, так и специальные ширмы. Также желательно отвести пространство, которое будет предназначаться только для ребенка. Данную зону стоит выделить с помощью обоев с изображением любимых сказочных героев. Здесь отлично подойдет мебель, способная раскладываться и складываться.
Делая планировку однокомнатной квартиры, главное знать определенные правила и следовать им!
Фото галерея
Смотрите еще 80 фото красивого интерьера для однокомнатной квартиры.
Видео
размеры однокомнатной квартиры, примеры оформления интерьера комнаты
На сегодняшний день очень многие люди проживают в маленьких однокомнатных квартирах-хрущевках.
Чаще всего они не только небольшие по метражу, но и имеют достаточно неудобную планировку, особенно это касается домов, построенных еще в советские времена.
Однако, если как следует продумать такие важные моменты, как планировка и дизайн интерьера, даже из совсем небольшой квартиры получится сделать очень уютное, удобное, стильное и современное жилище, которое будет радовать вас и всех членов вашей семьи.
Планировка однокомнатной «хрущевки»
Оптимальным вариантом будет устранение перегородок, поскольку это позволит увеличить площадь комнаты и сформировать очень удобную и современную квартиру-студию.
Убирать перегородки необходимо только те, что можно снести без вреда для конструкции дома. Этот вопрос нужно будет согласовывать со службами БТИ. Запрещено трогать несущие стены, вентиляцию и газопровод, а также располагать санузел над жилой комнатой или кухней соседей. Выполнять данные требования крайне важно, поскольку их нарушение может привести к таким плачевным последствиям, как разрушение дома.
На этапе принятия решения о перепланировке квартиры необходимо принять во внимание такой важный фактор, как количество людей, проживающих в 1-комнатной квартире.
К примеру, если в комнате будут жить родители и ребенок, необходимо разграничить пространство на две отдельные спальные зоны, которые можно разделить при помощи перегородки или штор.
При планировке 1-комнатной квартиры, в которой будут проживать родители и двое детей, целесообразно будет предусмотреть установку детской двухъярусной кровати.
Современные модели таких кроваток имеют очень красивый и яркий дизайн, вы можете подобрать двухъярусную кровать с изображением любимых сказочных персонажей деток, тогда они наверняка будут в полном восторге от своих кроватей.
Одна комната размером в 30 кв.
м может выступать одновременно и в качестве спальни, и в качестве гостиной, и в качестве детской. Также она может использоваться в качестве личного кабинета, для которого также следует предусмотреть отдельную зону для письменного стола – за ним домочадцы смогут работать и учиться.
В комнате не стоит устанавливать прикроватные тумбочки – они лишь будут отнимать много свободного пространства. А вместо стандартной кровати лучше всего установить диван-трансформер, который очень легко и быстро превращается в удобную и просторную двухспальную кровать.
Стол в комнате можно использовать также раздвижной – это очень удобно для небольших комнат, поскольку в сложенном виде стол будет занимать минимум места, но при необходимости он легко превратится в большой стол, за которым удобно разместятся все ваши гости.
Для небольших квартир оптимально использовать не только диваны-трансформеры, но и кресла, кровати и даже шкафы, в которых прячется спальное место.
Чаще всего владельцы однокомнатных хрущевок объединяют кухню с комнатой. Это очень правильное решение, поскольку кухни в хрущевках очень малы, в них с трудом размещается одновременно даже пара людей. Именно поэтому оптимальным решением станет объединение кухни с залом.
Однако, эти две зоны можно все же немного разграничить – при помощи установки барной стойки или же арки. Если такие варианты зонирования вам не по душе, то разграничить пространство получится при помощи внешнего вида отделки и мебели – используйте для кухни и комнаты напольное покрытие и отделку стен разных цветов. Обозначить различные зоны можно также и при помощи различного освещения.
В квартирах данного типа туалет и ванная обычно раздельные, однако их лучше сделать совмещенными, а также установить вместо громоздкой ванны компактную угловую душевую кабинку. Это позволит слегка увеличить свободное пространство помещений и сделать интерьер более удобным.
С таким вариантом планировки санузла вы сможете даже установить в ванной комнате стиральную машинку, а также выкроить немного места для навесных полочек или шкафчиков, в которых вы сможете хранить различные предметы гигиены.
Еще одна идея, которая в последнее время пользуется огромной популярностью – переделка балкона в просторную застекленную лоджию. Таким образом можно получить дополнительное пространство, где можно расположить еще одно спальное место, или же обустроить там рабочий кабинет.
Самое главное в этом деле – предусмотреть качественное утепление лоджии, на ней должна всегда поддерживаться комфортная температура.
Все советские квартиры-хрущевки были оборудованы небольшими кладовыми, которые теперь можно переделать в удобные и вместительные встроенные шкафы-купе.
Дополнительное место можно выкроить также, если снести перегородку между комнатой и прихожей.
Капитальный ремонт однокомнатной хрущевки
Как уже было сказано ранее, 1-комнатную хрущевку лучше всего превратить в квартиру-студию, в которой одно большое пространство будет выполнять функции сразу нескольких разных зон – спальной, гостиной и кухонной.
Начинать капитальный ремонт квартиры лучше всего с замены старых внутриквартирных коммуникаций – электропроводки, водопровода и канализации, отопительных батарей. Для этого лучше всего обратиться за помощью к профессионалам, поскольку рисковать с такими вещами не следует.
Также непременно следует заменить старые советские деревянные окна на новые современные стеклопакеты. Потребуют замены и входные, а также межкомнатные двери.
Следующими этапами станут стяжка пола, а также штукатурка, выравнивание и отделка стен.
Важный совет – еще до того, как вы начнете затевать ремонт, внимательно и точно просчитайте все предстоящие траты – на строительные материалы, а также на оплату работы мастеров.
Не стоит экономить на качестве материалов, поскольку от этого будет зависеть долговечность произведенного в квартире ремонта.
Варианты дизайна интерьера
Помимо правильной планировки квартиры, очень важно также грамотно оформить её внешний вид.
Чтобы визуально как можно больше расширить помещение, сделать его более воздушным и уютным, дизайн интерьера должен быть выполнен в светлых тонах. С этой же целью можно задействовать в интерьере зеркала, а также различные стеклянные и глянцевые поверхности.
Еще один очень важный момент – для того чтобы проживание к квартире было комфортным, необходимо правильно расставить мебель.
Лучшим решением в данной ситуации будет стиль «минимализм», поэтому мебели не должно быть много.
К примеру, если у вас в комнате установлен мягкий уголок, вы смело можете повесить над ним стильную навесную полочку для хранения книг, фотографий, статуэток и прочих аксессуаров.
По углам комнаты можно устанавливать такую мебель, как буфет или тумбочка. Удачные варианты расстановки мебели представлены на фотографиях ниже. Желательно, чтобы вся мебель была в светлых оттенках – это очень важно для маленькой квартиры-хрущевки.
Если вы любите современные и нестандартные решения, отличной идеей будет стилизация стен креативными арками, нишами, а также колоннами.
Очень важно также избавиться от всех старых и ненужных вещей, поскольку хранить их в маленькой однокомнатной хрущевке будет просто негде. А жить в захламленной квартире совсем некомфортно.
Не стоит забывать и о таком важном вопросе, как освещение квартиры. Для небольшой однокомнатной хрущевки требуется максимальное количество света, поскольку таким образом вы сможете визуально сделать квартиру просторнее, объемнее и уютнее.
Используйте современные стильные модели светильников, которые можно устанавливать на потолке или на стенах. Если планируете устанавливать люстру – выбирайте небольшую аккуратную модель.
Большое значение имеет и естественный свет, его также должно быть максимально много.
Поэтому, если есть такая возможность, делайте размеры окон как можно больше – добиться этого получится за счет уменьшения расстояния между двумя окнами.
Окна больших размеров смотрятся очень красиво и необычно, делают комнату более светлой и дышащей.
Желательно, чтобы светлой была и отделка потолка и стен, однако нужно учитывать, что стены при этом должны быть хотя бы на пару тонов темнее, чем потолок.
Обои могут иметь мелкие узоры в виде цветочков или завитушек. А потолок может быть глянцевым и таким образом дополнительно отражать и рассеивать свет. В интерьер светлой комнаты можно добавлять акценты в виде подушек, пледов и прочих аксессуаров, выполненных в контрастных тонах, например, синем, зеленом или фиолетовом.
В маленьких квартирах с низкими потолками не стоит выбирать в качестве отделки подвесные потолки, поскольку они сделают вашу комнату еще меньше.
Оформляя интерьер квартиры, старайтесь придерживаться одного современного стиля, который вы можете выбрать по своему личному вкусу.
На сегодняшний день большой популярностью пользуются такие стили, как классика, модерн, лофт, шебби-шик, этно-стиль, минимализм, прованс, кантри, хай-тек, арт-деко и многие другие.
Даже из самой маленькой однокомнатной «хрущевки» можно сделать стильную современную и комфортную квартиру, нужно лишь грамотно сделать перепланировку, а также красиво и оригинально оформить интерьер.
Пример планировки однокомнатной квартиры-студии вы увидите на видео ниже.
youtube.com/watch?v=LDs84F7N5wo» data-src=»https://www.youtube.com/embed/LDs84F7N5wo?modestbranding=1&iv_load_policy=3&rel=0″/>
Перепланировка однокомнатной квартиры в хрущевке, советы по реализации идей
Многим людям приходится ютиться в малогабаритных квартирах хрущевок. Все бы ничего, но вот размер площади оставляет желать лучшего. Это неудобно особенно тогда, когда семья большая. Но даже такие небольшие площади можно расширить. Правильно проведенная перепланировка однокомнатной квартиры в хрущевке позволит получить большую гостиную для приема гостей или сделать несколько отдельных зон в одном пространстве. Для правильного проведения работ нужно ознакомиться с некоторыми нюансами перепланировки.
Преимущества и недостатки перепланировки
Многие стараются не прибегать к сложному ремонту однушки хрущевки, а при первой возможности стараются ее продать или обменять с доплатой на просторное жилое помещение.
Но если жилье находится в доме, который располагается на центральной улице города, то приходится прибегать к перепланировке помещения, примеры которой продемонстрированы на фото. Тем более перепланировка малогабаритных однокомнатных квартир имеет немало плюсов:
- первое и главное преимущество — после перепланировки получится просторное помещение;
- отсутствие перегородок позволит организовать в помещении различные мероприятия, встречи гостей;
- дизайн комнаты станет светлее, после перепланировки добавиться одно окно, которое прибавит больше дневного света;
- в большом помещении можно с легкостью создать необычный и стильный дизайн;
- обустройство нужной мебелью, и при этом остается еще пространство для свободного передвижения.
Если кто-то думает что в одной просторной студии нельзя готовить еду и встречать гостей, это не так. Достаточно установить мебель и разделить с помощью нее пространство на зоны, и можно получить многофункциональное помещение.
Если сомневаетесь, то посмотрите различные фото с перепланировкой квартир однокомнатного типа хрущевки.
Но есть негативные стороны:
- поскольку планировка подразумевает объединение двух комнат, то получается 1 комната. Данный вариант не подходит для больших семей, особенно это касается тех случаев, когда планируется прибавление в семействе;
- придется спать в одной комнате с работающим холодильником, а это достаточно неприятное соседство;
- во время готовки запах от пищи будет быстрее распространяться по квартире, поэтому придется дополнительно потратиться на приобретение и установку вытяжки над плитой;
- по той причине, что гостиная будет иметь кухню, все помещение должно быть идеально чистым. А это значит, что придется каждый день проводить уборки;
- в зоне гостиной не рекомендуется стелить светлые ковры.
Но если нет возможности приобрести двухкомнатную квартиру, то придется довольствоваться тем, что есть.
А если проявить фантазию, то дизайн можно оформить так, что жилое помещение станет функциональным и красивым.
Виды перепланировок
Делать перепланировку квартир однокомнатного типа собственными руками сложно. При организации этого процесса необходимо учитывать многие факторы, любая неточность, может нарушить дизайн и стиль квартиры. Перепланировка делается разными способами:
- для визуальной перепланировки помещения достаточно правильно расставить предметы интерьера. Можно комнату разделить на две зоны, к примеру, отгородить небольшую часть для спальной при помощи модульной мебели. А соответствующая отделка позволит все это организовать грамотно и вполне гармонично;
- второй способ перепланировки — это снос перегородок. Поскольку однокомнатная квартира не имеет несущих стеновых перегородок, то их можно сносить, не боясь, что дом может дать трещину или совсем рухнуть, этого точно не будет.
Но помните, для расширения гостиной можно сносить перегородку только между кухней, прихожей или балконом.
ПерегородкаСнос стеныСанузел лучше не трогать, потому что потом будет невозможно установить соответствующие коммуникации, если санузел будет расположен над другой комнатой. Лучше санузел оставить на своем месте.
Проблемы при согласовании перепланировки
Перед тем как начать перепланировку малогабаритной квартиры хрущевки, нужно ознакомиться с основными требованиями при согласовании. Проект по перепланировке квартиры с одной комнатой легко согласовать, однако, стоит учитывать ряд важных требований:
- если квартира с одной комнатой, то согласовать и создать студию не получится. Согласно закону в квартире должна иметься одна отдельная жилая комната, которая должна быть изолированной, с естественным светом и размером площади не менее 9 кв метров;
- если соединяется комната и кухня, то в итоге получается общая комната – кухня гостиная, которая является нежилой. Из этого следует, что полное объединение кухни со смежной комнатой и коридором, возможно осуществить только в квартире с двумя комнатами.
Кроме этого, вход в туалет и ванну не должен располагаться на границе с остальным пространством. Вход следует перегородить небольшой перегородкой раздвижного типа, как показано на фото; - многое зависит от округа, где располагается сам дом. В некоторых не разрешается объединять газифицированную кухню с жилым пространством;
- при перепланировке хрущевки запрещено переносить кухню в жилую комнату, исключением считается не газифицированная квартира на первом этаже.
Зонирование пространства
Как превратить однокомнатную квартиру в двухкомнатную? Можно воспользоваться разделением пространства на зоны. Во время зонирования небольшой площади получается вполне нормальный дизайн квартиры для молодой семьи с маленьким ребенком. Для этого нужно все правильно сделать.
Мебель
Если многим кажется, что дизайн невозможно разделить на зоны при помощи мебели, то это не так. Многие фото показывают обратное. Варианты зонирования пространства мебелью:
- если нет возможности устанавливать ширму, то можно кухонную и гостиную зоны разделить при помощи барной стойки.
В результате можно получить стильное разделение и небольшой столик для обеденной зоны; - отделение зоны для отдыха и сна при помощи раздвижных дверей из стекла или матовой пластмассы, примеры чего прекрасно продемонстрированы на фото. В итоге получается решение проблемы полноценного сна. Для отделения этой зоны можно использовать высокий шкаф;
- перпендикулярно стены можно установить стеллаж, а с двух сторон установить столики в итоге получится два рабочих места;
- можно разделить пространство при помощи углового дивана. Этот предмет мебели отделяет зоны для приготовления пищи и приема гостей.
Шторы
Разделение комнаты на зоны с помощью занавесок является популярным способом зонирования. Главное, нужно использовать красивые и стильные занавески, гармонично сочетающиеся с общим дизайном квартиры. Шторам можно занавесить кровать или зону для отдыха. В этих случаях будут стильно выглядеть шторы восточного стиля и роскошные балдахины.
Для разделения прихожей от места приема гостей можно использовать бамбуковые занавески.
Ширма
В качестве практичного способа преобразования квартиры в двухкомнатную можно использовать ширму. Плюс этой перегородки состоит в том, что она переносная и ее всегда можно установить в любое место комнаты. Можно подобрать перегородки разных форм и стилистического вида. Поэтому можно с легкостью подобрать ширму, которая будет идеально вписываться в дизайн всего пространства. Ширму можно применять для отделения зоны отдыха, места для ребенка, встречи гостей и так далее. Как правильно расположить этот предмет и как декорировать, можно наглядно увидеть на многих фото, на которых представлены примеры такой квартиры.
Уровни разной высоты
Этот вариант предназначен для квартир с высокими потолками, в которых разделение пространства на зоны можно осуществить при помощи применения уровней разной высоты. Варианты уровневого зонирования:
- для выделения зоны отдыха и сна можно сделать небольшой уровень, на котором будет установлена кровать или диван;
- стильно будет выглядеть невысокий постамент под установку цветов и декоративных элементов;
- подиум можно использовать для хранения различных вещей, одежды, посуды и других предметов.

Соединение комнаты с балконом
Этот способ относится к расширению общей площади помещения. Если убрать стену между гостиной и балконом, то вполне можно преобразовать помещение в двухкомнатную квартиру. Советы по зонированию:
- полностью стену убирать не нужно, достаточно убрать балконную дверь и окно;
- балконное помещение следует утеплить, в противном случае в зимнее время холод будет распространяться по всему жилому пространству;
- балконная комната подходит для использования под зону отдыха или в качестве рабочего кабинета;
- на балконе вполне помещается небольшой диван, пару узких кресел и небольшой столик;
- балкон можно использовать для зоны отдыха. Достаточно установить небольшую односпальную кровать или раскладное кресло.
Сложность данного вида перепланировки состоит в правильном выборе отделки, ведь необходимо правильно стилистически соединить балкон с комнатой. Чтобы добиться этого, необходимо подбирать одинаковые отделочные материалы единой цветовой палитры.
Квартира студия
Преобразование однокомнатной хрущевки в студию сейчас становится достаточно распространенным вариантом перепланировки. В основном этот вариант используется не для проживания, а для организации определенного места, фотостудии.
Квартира студия – это просторное помещение для рабочего процесса и несколько комнат бытового типа, а именно туалет и примерочная комната. Обычно при перепланировке под такой тип помещения убирается перегородка между гостиной и кухней. Создается большое помещение для работы фотографа.
Эти квартиры популярны и среди молодежи. Многие молодые семьи предпочитают начинать жить именно в таких квартирах, поскольку стоимость их достаточно невысока, а дизайн очень привлекателен. Но проживание там может надоесть, многие дизайнеры советуют использовать различные способы зонирования. К примеру, применение различных ширм, штор, отделение зон при помощи мебели, шкафов.
Выбирая данный варианты перепланировки важно помнить, что в этом случае в комнату будут беспрепятственно проникать все запахи из кухни, хотя, с другой стороны, все это будет компенсировано простором и привлекательным видом.
К тому же с неприятными запахами можно справиться при помощи хорошей вытяжки на кухне.
Перепланировка однокомнатной хрущевки — это достаточно трудоемкий процесс, обеспечивающий увеличение площади. Применение различных способов зонирования поможет не только разнообразить дизайн, но и разделить комнату на отдельные зоны. А если посмотреть различные фото, то все можно сделать стильно и красиво.
Перепланировка однокомнатной хрущевки: 5 вариантов: houzz_russia — LiveJournal
Источник: Houzz
Несмотря на то, что большинство пятиэтажек постройки конца 1950-х годов снесены или готовятся к сносу, несколько серий всем известных (но не слишком горячо любимых) хрущевок пока относятся к «несносимым сериям». Это, например, панельная серия 1-515, блочная 1-510 и кирпичные 1-511, 1-447. Поэтому переделка хрущевки по-прежнему остается одной из самых обсуждаемых тем на дизайнерских форумах.
В этот раз мы рассмотрим сразу несколько квартир в таких домах. Чаще всего это пятиэтажные дома (встречаются трех-четырехэтажные варианты) без лифтов и с жилым первым этажом. Толщина наружных стен, в зависимости от серии, 30-40 см, внутренних несущих — 20-30 см, перегородок — 8 см.
Самая главная объединяющая особенность таких квартир — очень низкие потолки (около 250 см, однако в ранних вариантах высота доходит до 270 см) и маленькие площади как жилой, так и нежилой зон квартиры. Поэтому, если есть возможность, пространство в этой квартире целесообразней увеличивать, расширять и объединять, а не дробить. Однокомнатные квартиры несносимых серий похожи по планировке, незначительно различаются по площади, а так же имеют разное расположение окон и балконов: в угловых квартирах может быть два окна, в не угловых — одно. В каждой квартире есть балкон. Большим преимуществом является то, что все перегородки внутри квартиры не являются несущими, а значит, от них легко можно избавляться.
Некоторые из вариантов подходят для всех перечисленных серий, некоторые — только для одной, однако все они могут оказаться полезными источниками идей. Тем более, что в большинстве случаев еще до начала ремонта перепланировка хрущевки 1-комнатной должна быть согласована и узаконена.
Такие планировки квартир встречаются в домах серии 1-511, 1-447, 1-515/5. Вариант с балконом и еще одним окном — это угловая квартира. Подобная планировка хрущевки может как добавить неудобств, так и наоборот — открыть множество новых возможностей.
Вариант 1-комнатной хрущевки с одним окном и балконом встречается в сериях 1-515, 1-511 и других. Данная планировка, в отличие от других, содержит раздельный санузел и коридор. Это же пространство в других планировках формально считается жилой комнатой, что ограничивает возможности перепланировки.
Здесь балкон располагается на длинной стене комнаты; в остальном — планировка не отличается от первого варианта. Такие квартиры встречаются в сериях 1-510.
1. Для всех серий
Перепланировка
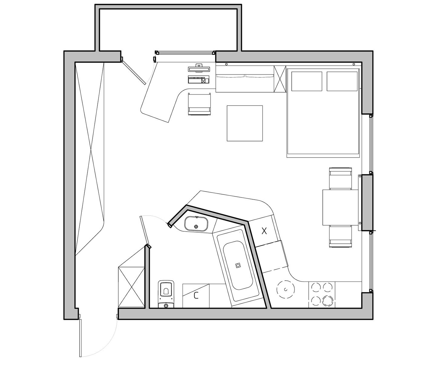
Один из самых очевидных и беспроигрышных вариантов перепланировки однокомнатной небольшой хрущевки — превращение ее в студию. В данном случае прихожая остается изолированным помещением, за дверью которого находится одно общее пространство, составляемое спальней, гостиной и кухней. Так же в углу за перегородкой находится гардеробная, а остальное пространство освобождается от лишних шкафов.
Телевизор, разделяющий спальную и гостиную зону, можно повернуть в любую сторону, небольшой обеденный стол — при необходимости разложить. В санузле помещается ванная, стиральная машина, умывальник и унитаз.
Подробности
Помещения: изолированная прихожая, общий санузел, гардеробная за перегородкой, совмещенные кухня и жилая комната. Подходит для одного жильца, для пары, для гостеприимных хозяев и любителей порядка.Для согласования планировки потребуется заменить газовую плиту на электрическую.Плюсы планировки: отдельная гардеробная, свободное жилое пространство.Минусы планировки: отсутствие изолированных жилых комнат.
Даже в маленькой квартире можно уделить особое внимание прихожей и сделать ее самостоятельным интересным помещением.
Для отделения спальни или гардероба не обязательно возводить стену с дверным проемом — достаточно просто отгородить помещение, оставив с одной или с двух сторон проходы шириной 65-90 см.
В случае с небольшой студией стоит обратить внимание на скандинавский стиль интерьера.
Здесь важны легкость и отказ от лишних деталей, которые помогут зрительно расширить пространство квартиры.
2. Для серий 1-515, 1-511
Перепланировка
В данном случае акцент сделан на большую кухню, санузел и ванную. За счет коридора увеличен размер санузла, таким образом в отдельной ванной помещается ванна, стиральная машина и умывальник, а в соседнем санузле — умывальник и унитаз. Такая перепланировка хрущевки позволяет добавить и к кухне пространство бывшего коридора — перегородка почти целиком сносится. В итоге на кухне остается много места для большой рабочей зоны, широкого холодильника и стола на четыре-шесть человек. В жилой комнате располагается раскладной диван, большой шкаф вдоль стены, кресло и телевизор.
Подробности
Помещения: раздельные санузел и ванная, общая кухня и спальня-гостиная, прихожая.Подходит для тех, кто не много времени проводит дома; для любителей готовить и собирать гостей за столом.
Для согласования планировки потребуется заменить газовую плиту на электрическую. В других сериях коридор формально является частью комнаты, но иногда удается согласовать перенос на него санузла.Плюсы планировки: большие комфортные кухня и санузел; свободное пространство; нету ненужного коридора.Минусы планировки: отсутствие полноценной кровати и отдельной спальни.
Такая перепланировка однокомнатной хрущевки хороша тем, что появляется большая кухня. Если очень постараться, можно спланировать кухню так, что в ней все уместится, и каждый предмет займет свое логичное место. Приложенные усилия на этапе проекта окупятся радостью от работы на такой кухне.
Необязательно загромождать стену гостиной шкафами или подставками под телевизор. Иногда лучшее решение — повесить его на стену и оставить пространство вокруг свободным.
Небольшая хитрость для отдельного санузла — наличие небольшого умывальника.
Это решает много проблем и добавляет помещению функциональности. Такое решение актуально не только для хрущевки, но и для любой небольшой 1-комнатной квартиры.
Продолжение читайте на Houzz.
План однушки хрущевки. Из угловой однушки в хрущевке – просторная двушка
План однушки хрущевки. Из угловой однушки в хрущевке – просторная двушка
Маленькая кухня, тесный коридор, единственная комната, да еще и в хрущевке. Казалось бы, такому жилью никакой дизайн интерьера не поможет. Возможно, опыт Марии Дадиани убедит вас в обратном. Ей удалось превратить хрущевку в современное жилье кухней-гостиной и солнечной изолированной спальней.
Сведения о квартире: однокомнатная квартира в пятиэтажном доме «хрущевской» серии, Москва.
Владелец квартиры: женщина.
Пожелание клиентов: перепланировка квартиры с выделением отдельной спальни и кухни-гостиной.
Казалось бы, нет более унылого для дизайнера объекта, чем угловая «однушка» в доме хрущевской серии – с низкими потолками, кухней на пять «квадратов» и ванной на три.
Как обратить недостатки в достоинства, обмануть время и перехитрить пространство? Дизайнеру Марии Дадиани это определенно удалось. Проект «В 5 минутах от Патриарших…» — наглядное пособие по бытовому волшебству: перепланировка двухкомнатной квартиры из однокомнатной. Унылая однушка получает кухню, гостиную и отдельную спальню с гардеробом. Вместе с новым обликом в жилище возвращается дух старой Москвы. В результате перепланировки стена между кухней и комнатой исчезла, образовав просторную кухню-гостиную. Половина бывшей комнаты стала изолированной спальней.
В результате перепланировки стена между кухней и комнатой исчезла, образовав просторную кухню-гостиную. Половина бывшей комнаты стала изолированной спальней. Комната в угловой «однушке» имеет два окна – благодаря этой особенности, перепланировка двухкомнатной квартиры дала полноценную солнечную спальню.
Почти вся мебель в квартире – невесомая, светлая, с объемными филенчатыми фасадами. Черные и металлические детали смотрятся на таком фоне очень выразительно.
Их немного, поэтому воздушности интерьера это не вредит. Обратите внимание: рисунок гардин перекликается с принтом покрывала и формой ручек для гардероба.
Интерьер квартиры оформлен в черно-белых тонах, но преобладающий цвет в комнатах – белый, что визуально расширяет пространство. Обои с мелким редким рисунком (на первый взгляд, в горошек, а на самом деле, в цветок) придают помещению дополнительный объем. Обои – вообще одна из главных «фишек» интерьера. За счет белого фона, рисунка с геральдическими мотивами и плотной фактуры они выглядят аристократично, светло и уютно.
В кухне-гостиной нет штор – это сознательное решение: ничего не должно мешать свету проникать в комнату. Столешница рабочего стола плавно переходит в подоконник – тут вам и экономия места, и никаких щелей. Так же дизайнер поступила с кухонным столом. Конструкция «комод и телевизор» условно разделяет зоны кухни и гостиной (как и плитка на полу), но при этом телевизор закреплен на кронштейне и поворачивается туда, куда в данный момент нужно хозяйке.
То, что на кухне нет традиционной обеденной зоны – тоже не случайность. Хозяйка квартиры редко готовит дома, а перекусить можно за рабочим столом или столиком у дивана. Духовой шкаф и варочная поверхность на кухне не пытаются образовать одно целое. Духовка встроена выше, между шкафов — так гораздо удобнее с ней обращаться. Посудомоечная машина спряталась под варочной поверхностью.
Чтобы повесить кондиционер, пожертвовали одной секцией стеллажа в гостиной. Почему бы и нет?
Спрятать радиатор в маленькой квартире очень сложно. Поэтому здесь его не стали прятать, а наоборот, выделили. Черная ретро-батарея отлично вписывается в концепцию интерьера и играет роль визуальной доминанты в простенке.
Два зеркала в прихожей создают зеркальный коридор, визуально увеличивая пространство.
Перепланировка однокомнатной хрущевки в двухкомнатную. Однокомнатная хрущевка: перепланировка
Молодые семьи, как правило, покупают однокомнатные квартиры. Однокомнатную хрущевку легко переделать в квартиру студию, что является для молодых людей отличным вариантом.
В таком случае, избавляются от перегородок, отделяющую комнату и кухню, а также прихожую.
В том и другом случае, такое помещение, как санузел, остается не тронутым, поскольку его перемещать нельзя, если это не первый этаж.
На фото выше видно, что перепланировка частично коснулась и санузла, за счет перемещения двух стен на значительное расстояние. Это стена, обращенная в зал, и стена, отделяющая прихожую. За счет незначительного увеличения площади удалось поместить стиральную машинку. В малогабаритных комнатах всегда ощущается недостаток места, когда требуется установить современную бытовую технику. Хотя прихожая и получается не большая, зато в комнате достаточно места и можно установить гардеробную.
На другом фото представлен еще один вариант перепланировки 1 комнатной хрущевки. Этот вариант отличается тем, что объединили кухню и коридор. Двери в комнату смещены дальше от входа, что дало возможность, более оптимально использовать жилое пространство. В результате такого дизайна появилось место в коридоре под шикарный встроенный шкаф.
Это не повлияло на функциональность кухни, а ее площадь увеличилась на 0,2 метра квадратных.
В последнее время многие жильцы практикуют еще один способ увеличения жилой площади – это совмещение лоджий и балконов. Но для этого нужно тщательно произвести утепление стен балконов и лоджий, а также, провести туда отопление. В результате можно получить еще одну комнату с оптимальной температурой, где можно разместить, например, рабочий кабинет.
Существует еще один вариант перепланировки однокомнатной хрущевки, расположенной в кирпичном доме. Здесь очень маленькие площади санузла и кухни, но перегородки размещены стандартно.
В данном случае, желательно отказаться от ванны в пользу душевой кабинки. Это позволит оптимизировать полезное пространство в санузле, расположив правильно сантехнику и поместив туда стиральную машину. При этом, одна из стенок получается скошенной, а площадь кухни не значительно, но увеличивается, хотя площадь прихожей несколько уменьшается.
Жилую площадь можно увеличить за счет расширения на балкон, утеплив его соответствующим образом. На балконе можно установить шкаф и рабочий стол. Подобная перепланировка довольно актуальна, если семья состоит из пяти человек: 3-х детей и 2-х взрослых. При этом, желательно установить одну двухэтажную кровать для детей. На очередном фото можно увидеть подобный вариант переделки жилой квартиры.
К сожалению, не всем по душе иметь квартиру-студию, как не все воспринимают санузел, где совмещены ванна и туалет. Многим не нравится отсутствие стен, когда нельзя посидеть на кухне незамеченным для окружающих, тем более, что это актуально при наличии детей, да еще в однокомнатной квартире.
В таком случае, перепланировка осуществляется за счет переноса перегородок, в зависимости от приоритетов. Боковую стенку прихожей нужно сдвинуть в сторону комнаты, а лицевая стенка подвинута, почти вплотную к двери в санузел. После подобных действий увеличивается площадь прихожей и теперь появляется возможность установки в прихожей встроенного шкафа и гардеробной.
Естественно, что площадь комнаты уменьшается, поэтому придется компенсировать недостаток площади за счет кухни. Несмотря на это, после переноса стены ближе к двери ванной, образовалось место для холодильника. В результате подобной перепланировки столовая часть кухни сдвинулась в комнату. Чтобы оптимизировать пространство, следует установить двери раздвижные или двери-гармошку.
При этом, комната получила Г-образную форму, где можно установить перегородку, чтобы разделить комнату на взрослую и детскую зону. По такому же принципу, можно из однокомнатной квартиры сделать двухкомнатную. Это имеет серьезное значение при наличии детей.
Существует еще один вариант перепланировки 1 комнатной квартиры, но только с другой изначальной планировкой. В данном случае переделка минимальная и сводится к обустройству перегородки из гипсокартона. Ее устанавливают так, чтобы она занимала не больше половины промежутка, чтобы во второй части было доступно освещение.
Как вариант, предлагается перепланировка угловой однокомнатной хрущевки, в квартиру студию с выделением спального места.
В этой части квартиры может поместиться лишь кровать и шифоньер, но имеется один существенный плюс: спальня получается изолированной.
Перепланировка четырехкомнатной хрущевки. Описание квартир
Двухкомнатная квартира в типовых проектах раннего периода встречается намного чаще, чем однокомнатная. Тем не менее круг проблем одинаков: площадь мала, комнаты расположены как попало, есть проходные помещения. Если в квартире предусмотрено две комнаты, ее площадь колеблется от 41 до 46 квадратных метров, а однокомнатные делались размером 30-31 м2. Независимо от площадей, выделялась кладовая либо встраиваемый шкаф и шкаф-холодильник (углубление под кухонным подоконником).
Все квартиры хрущевских серий 1-2-3-4-х комнатные, площадь комнат может различаться очень значительно. Так, гостиные занимают от 14 квадратных метров, спальни от 8 кв. м, детские комнаты от 6 кв. м. Больше всего «не повезло» кухням, их площадь начинается от 4.5 квадратов и даже в самых просторных вариантах составляет 6 или 7 квадратных метров.
Трехкомнатная квартира может достигать 60 кв. м или даже чуть большей величины, но все равно в ней будут присутствовать смежные комнаты.
Четырехкомнатная «хрущевка» имеет размер от 62 до 72 кв. м, в этом варианте, наконец, появилась изоляция всех помещений друг от друга. Неудивительно, что дизайнеры и энтузиасты перепланировок высоко ценят это свойство. Почти всегда нет необходимости в радикальных изменениях внутреннего пространства, можно обойтись незначительными корректировками.
Гораздо чаще, впрочем, встречаются квартиры хрущевских серий площадью 30, 43 или 45 кв. м. Особенностью, характерной для жилья какой угодно площади, является выход окон всех квартир, за исключением угловых, в одну сторону. Именно так выглядят все дома серии 1-335, активно строившейся с 1963 по 1967 годы.
Важный момент: при перепланировке в идеале должны решаться не только эстетические проблемы, но и проблемы с использованной инфраструктурой. Независимо от серии, года постройки и нюансов распределения помещений, электропроводка и другие коммуникации морально устарели и не соответствуют требованиям нынешних потребителей.
Подключать энергоемкую бытовую технику становится очень опасно.
План трехкомнатной хрущевки. Хрущевки: описание, типовые планировки с фото
Введение
Сегодня существует множество многоярусных домов различной планировки, годов постройки и размера жилой площади. В данной статей Мы более подробно рассмотрим основные планировки популярных многоэтажных «Хрущовок», которые можно встретить в каждой стране бывшего СССР. Как правило, это 4-х или 5-ти этажные многоквартирные дома, которые возводились во времена руководства Хрущева Никиты Сергеевича.
«Хрущевки» возводились в период с 1958 до 1985 года, при этом стройка была современного на то время типа, и тысячи семей смогли получить комфортабельные квартиры с проходными комнатами. С 1958 года действует собственный СНиП.
Общие сведенья о хрущевках
Первое поколение 4-х или 5-ти этажных «хрущевок» отличалось небольшой жилой площадью, проходными комнатами. В таких апартаментах высота потолков достигала всего 2,48 метра, в домах блочного типа высота потолка могла достигать 2,7 метра.
В «хрущевках» была достаточно слабая звукоизоляция помещений, совмещенный санузел и отсутствовали лифты.
Стоит отметить, что некоторые «хрущевки» относились к временному жилью, которые рассчитывали на эксплуатацию до 25 лет. Однако большая часть, все еще используется гражданами бывших стран СССР. К «хрущевкам» не сносимой серии применялись другие эксплуатационные нормы до 50 лет. В последствие эксперты заявили, что эксплуатационный период можно продлить до 150 лет (в случае капитальных ремонтов согласно нормам). На сегодняшний день «хрущевки» в Москве и Питере подлежат сносу. Однако в Минске, «хрущевкам» выполнили кап. ремонт и утеплили наружные стены.
Основные характеристики «хрущевок»:
- 3-комнатные с общей площадью 55-58 м²;
- 2-комнатные с общей площадью 30-46 м²;
- 1-комнатные с общей площадью 31-33 м².
Жилая площадь комнат:
- Гостиные комнаты – от 14 м²;
- Спальные комнаты – от 8 м²;
- Детские комнаты – от 6 м²;
- Кухни – от 4,5 м².

Виды типовых планировок, серии, фото, описания и годы постройки хрущевок
СЕРИЯ 1-464 – (год постройки 1960-1967)
Пяти ярусные дома панельного типа с четырьмя квартирами на одной площадке.
Особенности:
Высота помещений – 2,5 м;
Санузел совмещенный;
Кухня – 5,8 м²;
Особенности: кладовка, шкафы встроенного типа, балкон.
Площадь гостиной в 1-но комнатных «хрущевках» этого типа составляет 19 м², в 2-х и 3-х комнатных 17,3 м²; 19 м² и 20,4 м² в зависимости от планировки. Кладовая размещается в конце спальни или между 1 и 2 спальней. Выход на балкон из гостиной. Санузел совмещенный рядом с кухней.
СЕРИЯ 1-335 – (год постройки 1963-1967)
Панельные пяти ярусные дома с четырьмя квартирами на одной площадке.
Особенности:
Высота помещений – 2,5 м;
Санузел совмещенный;
Кухня – 6,2 м²;
Особенности: кладовка, шкафы встроенного типа, балкон.
Площадь гостиной в 1-но комнатных «хрущевках» этого типа составляет 18 м², в 2-х и 3-х комнатных 17,1 м²; 18,2 м² и 19,1 м² в зависимости от планировки.
Кладовая размещается в конце гостиной или между 1 и 2 спальней. Выход на балкон из гостиной. Санузел совмещенный рядом с кухней.
СЕРИЯ 1-434 – (год постройки 1958-1964)
Панельные пяти ярусные дома с четырьмя квартирами на одной площадке.
План хрущевки 2 комнаты. Преимущества и недостатки перепланировки
Особенности планировки мало комфортабельной двух комнатной квартиры в хрущевке довольно ощутимы, а их примеры собраны в небольшой подборке фото. Зачастую это такие негативные моменты, как дискомфорт от неудобного расположения комнат, ограниченность пространства ввиду малой площади комнат. Вот почему владельцы таких квартир стремятся выполнить перепланировку с помощью привлечения наемной бригады строителей. Чтобы сэкономить денежные средства, можно выполнить ремонт своими руками.
Ремонт хрущевки с перепланировкой имеет как преимущества, так и недостатки. Плюсами такого решения являются следующие моменты:
- комнаты становятся более просторными и уютными, а их интерьер — более жилым;
- многие стены в таких домах не являются несущими, поэтому при некотором усердии справиться с их демонтажем можно довольно быстро.
Несущие стены не задействуют, а новый дизайн порадует вас сполна; - новая планировка открывает для владельцев квартир неограниченные возможности. Дизайн помещений может быть разным, что позволяет проявить фантазию, сделать уникальную отделку поверхностей, украсив тем самым интерьер.
Процесс перепланировки имеет такие недостатки:
- сложность ремонта и оформления дизайна, ведь он подразумевает демонтаж и возведение стен и простенков в квартире;
- забирает пространство одной из смежных комнат за счет разделения;
- требует дополнительных капиталовложений на демонтаж стены и дизайн комнат. Однако при выполнении работы своими руками, значение этого недостатка можно несколько приуменьшить;
- более длительный ремонт, повышенная степень загрязнения строительным мусором и пылью после проведения работ.
План двухкомнатной квартиры в хрущевке. Отличительные черты планировки хрущевок в кирпичных домах
При рационализации строительства панельных домов было принято решение заменить железобетонные панели, которые в то время использовались для строительства на силикатный кирпич.
Его было удобно перевозить на место стройки. Был заново разработан новый проект, который немного отличался от разработанного до этого для панельных зданий.
Если в двухкомнатной хрущевке проживает пара или семья с ребенком, квартира нуждается в переделке.
Было разработано новое архитектурное новшество, которое подразумевало переделку комнат с использованием продольного расположения. Это уменьшало количество однокомнатных квартир в жилом доме. Изменились также габариты кухни – они стали меньше, но увеличилась площадь, которую занимают кладовки и добавились лоджии.
Если снести все стены (за исключением несущих), получится квартира со свободной планировкой.
Угловая 2 комнатная хрущевка отличается измененной планировкой, которая выводит окна на две стороны, и существует возможность обзора улицы с разных ракурсов. На этом плюсы этой жилплощади заканчиваются. При возведении панельных домов стены делались тонкими, что уменьшало их теплоизоляционные свойства.
Эти квартиры были холоднее по сравнению с другими, которые находились, например, внутри здания.
В кирпичных домах, где стены достаточно толстые (полметра и больше), такая проблема с промерзанием угловых стен не бывает такой актуальной. В таких помещениях намного теплее и комфортнее.
Хрущевка 1 комнатная размеры. Планировки серий домов раннего строительства
Итак, какие же разновидности малометражек существовали в Советском Союзе и существуют по сей день? Первая, и самая популярная серия жилья возводилась под номером 1-464. Все квартиры этой серии оборудованы балконами и небольшими кладовыми, но в подъездах отсутствует лифт и мусоропровод. В таких домах были двухкомнатные, трехкомнатные и однокомнатные квартиры. На площадке четыре двери. Начиная с 1963 года на протяжении четырех лет активно строились малометражки серии 1-335. Здесьуже больше на 4 см, а размер столовой зоны достигает 6,2 квадрата. Даже планировка 1-комнатной хрущевки этой серии предполагает наличие.
На площадку выходят четыре двери, максимальный размер — трешки. Четырехкомнатных квартир в типовых домах не было.
Видео ОДНУШКА ПОСЛЕ РЕМОНТА. ХРУЩЕВКА.
Хрущевка 1-комнатная: планировка квартиры, расстановка мебели
Многих покупателей хрущевки (1-комнатной), планировка которой вызывает затруднения, интересуют площадь ее помещений и правильная расстановка мебели. Владельцы таких квартир также часто ищут информацию о рациональном использовании территории.
Однушка хрущевка и ее характеристики
Пик строительства зданий в СССР пришелся на период с конца 50-х по 60-е гг. В то время была поставлена цель построить жилье в короткие сроки. Для экономии средств и быстрого выполнения назначенного плана квартиры проектировали небольшого размера.
При строительстве домов использовали белый или красный кирпич, железобетонные панели.
Здания имели 4 или 5 этажей.
Метраж однокомнатного жилья составляет 29-33 кв. м. Комната прямоугольной формы имеет площадь 16-20 кв. м. Кухня занимает 5-6 кв. м, санузел — около 3,5 кв. м. Коридор вытянутой формы расположен на 4-5 кв. м. Высота потолков в среднем равна 2,5 м. Панельные дома обладают слабой звукоизоляцией внутренних стен и плохой теплоизоляцией.
Особенности планировки однушки
Планировка однокомнатной хрущевки отличается небольшими размерами помещений (за исключение комнаты). Санузел в основном является совмещенным. В нем располагается стандартная ванна, но в некоторых домах она сидячая.
Планировка 1 комнатной квартиры 1-528 с размерами из кирпича
Планировка 1 комнатной хрущевки (серия 1-335)
На кухне кирпичных зданий в подоконном пространстве размещен в закрытой нише с дверками так называемый «хрущевский холодильник». Часто в его наружной стене находится отверстие, необходимое для приточной вентиляции. Такой шкаф-холодильник использовался для хранения продуктов.
Во многих квартирах на кухне размещены газовые колонки для подогрева воды.
В большинстве квартир такого типа между кухней и санузлом наверху расположено застекленное прямоугольное окно высотой 40 см. Его проектировали для дополнительного освещения и профилактики образования плесени. Выступающий в коридор угол санузла бывает прямым или скошенным. Часто в прихожей при входе на кухню расположена просторная антресоль.
Встречаются квартиры, в которых потолок на последнем этаже расположен выше. В планировках хрущевок почти всегда (кроме первых этажей) присутствует балкон.
Грамотное зонирование в однокомнатной хрущевке
Планировка хрущевки 1 комната которой приобретает функции гостиной и спальни, а нередко и детской.
Разграничить пространство которой можно с помощью:
- штор;
- ширмы;
- стеллажа;
- мебели;
- перегородок из разных материалов.
Перегородки бывают стеклянными, коваными и деревянными.
Раздвижная ширма удобна тем, что ее при необходимости можно легко убрать. Разделить пространство можно и шторами, аквариумом, панелями пузырьковыми. Зонирование в однокомнатной хрущевке можно сделать перегородкой из реек и подсветить ее светильниками (спотам).
Создавая планировку на территории, отведенной для маленького ребенка, стены можно оклеить детскими обоями, на полу — разместить ковер. Существуют специальные невысокие ограждения из дерева или пластика, которыми выделяют детскую зону. К тому же это предотвратит разбрасывание игрушек по всей квартире.
Как расставить мебель в однокомнатной квартире (хрущевке)
Планировка однокомнатной хрущевки компактная и требует глубокой проработки мест расположения мебели и правильно выбора ее размеров. Выбор в пользу кровати или дивана делают в зависимости от размеров и планировки гостиной и количества проживающих. Второй вариант для тесной планировки предпочтительнее, если место для сна нужно для 2 человек. Расстановка мебели при планировке должна быть такой, чтобы прямоугольная комната не выглядела узкой и вытянутой.
Для этих целей подойдет угловой диван.
Как обставить однокомнатную хрущевку выгодно и без трудозатрат
При планировке и обстановке мебелью необходимо избегать длинных конструкций из гарнитура одинакового размера. Лучше приобрести небольшую модульную систему, состоящую из разноуровневых элементов. Также можно расставить в разных местах небольшой гарнитур (пеналы).
Расстановка мебели в однушке 1-528 серии
Перегородка, как зона разграничения в комнате.
Желательно отказаться от громоздкого гарнитура. Большой шкаф-купе уместен у стены, расположенной напротив окна. Тогда он не будет делать прямоугольную комнату более узкой. Гарнитур выбирают с зеркальными дверцами, чтобы визуально увеличить пространство. Мебель лучше покупать светлых оттенков.
Детская зона
Процесс выделения места для детей на планировке однушки очень важен, но и сложен одновременно.
Для школьников можно приобрести малогабаритную модульную систему, где шкаф, письменный стол и полки размещены рационально.
Если места недостаточно при планировке, хорошим вариантом станет низкая кровать-чердак с ящиками, расположенными внизу, и выдвигающимся столом.
Кроме этого, предлагаются модели-трансформеры с встроенным гарнитуром. Если в семье 2 детей, то выручит кровать с выдвигающимся вторым спальным местом или двухъярусная конструкция.
Кухня и коридор
На кухне в рабочей зоне помещаются большая мойка, 1 напольный одностворчатый шкаф и 2 подвесных, плита. На противоположной стене можно расположить небольшие полки открытого или закрытого типа. Для экономии пространства приобретают стол-трансформер и складные стулья.
В прихожей размещают небольшой узкий шкаф, тумбу с зеркалом, вешалку для верхней одежды, обувницу. Последняя может быть закрытой или в виде этажерки, совмещать в себе функцию скамейки. Желательно, чтобы на дверцах гарнитура размещались зеркала для визуального расширения пространства.
Заключение
Планировка однокомнатной квартиры в хрущевке имеет свои недостатки, основными из которых являются длительный срок эксплуатации дома за который все инженерные коммуникации пришли в негодность и требуют замены, небольшие размеры помещений.
Но такое жилье обладает и преимуществами. Многих покупателей привлекают невысокая цена и возможность проживать в отдельной квартире.
Квартира хрущевка (отзывы владельцев)
Настя, 23 года, город Пермь: «Мы делаем ремонт в своей однушке. Нас предупредили, что нужно менять проводку. У нас 2 компьютера и много бытовой техники. Еще купим электрическую духовку. Стиральную машину не хочу ставить на кухне. Возьмем узкую, поставим в ванной».
Анонимный пользователь, город Екатеринбург: «Главный недостаток — старые коммуникации. Проводка не рассчитана на большое количество бытовой техники. Еще и помещения маленькие».
Вишня: «План квартиры не всегда помогает. Иногда на нем видно, что места много, а в реальности нужно комнату обставить — становится мало. У нас так с диваном получилось. Сначала хотела, чтобы он был большой. На плане все выглядело отлично. Но выбрали все-таки маленький. И это оказалось правильным решением. Советую выбирать компактный гарнитур, обращая внимание на размеры помещения.
В коридоре панельного дома мало места, некуда поставить шкаф для верхней одежды, пришлось обойтись вешалками. Хрущевка 1 комнатная, площадь которой очень мала имеет еще и плюсы. Меньше нужно времени на уборку. Мало средств тратиться на ремонт.
Инженер-проектировщик ПГС (промышленное и гражданское строительство)
дизайн, планировка с размерами и фото
Хрущевки сегодня еще стоят по всей стране. Несмотря на преклонный возраст, это жилье находится в достаточно хорошем состоянии, активно ремонтируется и украшается. По современным меркам внутреннее распределение помещений в этих домах не выдерживает конструктивной критики.
Комнаты расположены неудобно, имеют маленькую площадь, что стесняет людей. Однако если сравнить планировки этих квартир и современных малобюджетных студий, преимущество старых построек становится очевидным. Во всяком случае, здания тех лет не строились с максимальной экономией, в квартирах сохраняется приемлемый уровень звукоизоляции.
Важно! Перепланировка однокомнатной квартиры в хрущевке – обязательный процесс, если после покупки еще остаются деньги на нормальный ремонт. Изменение проектных параметров комнат сделает жилье удобнее.
Совмещенная планировка без внутренних перегородок
Вернуться к оглавлениюСодержание материала
Особенности типовых домов 50-х годов постройки
По стране часть домов, построенных во второй половине 50-х годов, давно снесена или готовится к этому. «Хрущевок» пока такая участь избегает, поэтому переделка квартир в этих домах до сих пор остается одной из самых актуальных тем на дизайнерских форумах. Самыми распространенными сериями являются: 1-515 (панельные дома), 1-510 (блочные дома), 1-511 и 1-447 (кирпичные дома).
«Хрущевка» по проекту 1-511
Внешние стены домов, в зависимости от проекта, по толщине составляют 30-40 см. Внутренние – 20-30 см, а перегородки – 8 см.
Особенность этих домов состоит в том, что высота потолка составляет 250 см, но в некоторых случаях она могла доходить до 270.
Кратность 50-ти сантиметрам позволяет с удобством подбирать некоторые отделочные материалы. Например, 10-ти метровый рулон обоев разрезается ровно на 4 куска.
Однокомнатные квартиры во всех перечисленных сериях планировкой сильно не отличаются – меняются размеры окон, площадь помещений и расположение, балконов, окон и дверей. Балконы есть во всех квартирах, не считая первые этажи.
Внутренние перегородки делались преимущественно из дранки, набитой на доски, и с известковой штукатуркой. Штукатурку не делали, как сейчас, по маякам, из-за чего стены имеют высокую кривизну. Зато перегородки легко разбираются и заменяются на новые, так как не являются несущими.
Стена-дранка со снятой штукатуркой
Внимание! Перед тем как начинать делать перепланировку, необходимо ее согласовать с органами местного самоуправления. В противном случае придется заплатить штраф. Перепланировка может быть выявлена при продаже квартиры.
Теперь рассмотрим несколько вариантов планировок, которые встречаются в хрущевках:
- Первый тип встречается в сериях 1-515/5, 1-447 и 1-511.
Дополнительное окно в гостиной устанавливается в угловых квартирах. Недостатком является то, что проход из коридора в кухню идет через зал. Санузел совмещенный. Размер жилой комнаты составляет 17,2 квадратных метра. Подобная планировка может доставить проблемы или открыть перед вами новые возможности — в зависимости от желаемого результата.
Проходной коридор через гостиную в однушке
- Следующий тип бывает в хрущевках серий 1-511 и 1-515. Особым ее преимуществом является раздельный санузел. Так как его пространство не считается жилой площадью, для хозяев открывается больше возможностей при перепланировке. В кухню (варианты планировки кухни в хрущевке представлены в статье) ведет отделенный от комнаты коридор. Размер комнаты точно такой же.
Эта планировка будет выгодной для переноса перегородок
- Следующий вариант планировки ничем не отличается от первого, кроме балкона, вынесенного на длинную стену. Такие квартиры встречаются в сериях 1-510.
Планировка эта угловая.
Подобное расположение окон и дверей затрудняет расстановку мебели
Вернуться к оглавлениюКак перепланировать помещения
Перепланировка согласовывается с БТИ, но не все изменения требуют регистрации в органах, так как зонирование может выполняться легкими перегородками, например, или мебелью. Рассматривая представленные выше планировки, становится понятным, что основные недостатки такого жилья в соединенном санузле и маленькой кухне. Комната вытянута, что позволяет с удобством расставить мебель, но не всегда.
Перепланировка не может быть типовой, иначе никакого смысла эта затея иметь не будет. Каждый сам подстраивает под себя жилье – у кого-то есть дети, которым требуется место не только для сна, но и для учебы, кто-то допускает мысль об объединении кухни и комнаты, а кому-то она претит. В общем, подход строго индивидуальный, поэтому обозначим основные приемы, которые используются людьми повсеместно, и представим несколько вариантов в качестве примера.
Увеличение жилой площади за счет балкона
Распространенный прием, который требует согласования со многими органами. Применяется он тогда, когда выход на балкон сделан из кухни. Объединять наружное помещение с залом не имеет смысла, так как убрать стенку не получится полностью из-за того, что она несущая, и не стоит уменьшать теплоэффективность комнаты, в которой вы спите.
Дизайн однокомнатной квартиры в хрущевке без перепланировки
Балкон не является отапливаемым помещением — да и вообще, по проекту он не остекляется и не утепляется. Использование его площади даст следующие преимущества:
- Дополнительные квадратные метры – на балкон можно вынести бытовую технику, например, холодильник (как выбрать место для холодильника на маленькой кухне читайте в статье), освобождая место в основной кухонной зоне.
- Лучшее естественное освещение.
- Более качественное проветривание кухни.
В зависимости от типа перепланировки, часть стены, что находилась под окном, сносится или оставляется на месте.
В первом случае владельцы получают широкий и удобный проход на балкон, а также большее визуальное пространство в помещении. Во втором – можно оставить на месте радиаторы отопления, или соорудить из тумбы барную стойку, да и затрат и грязных работ будет намного меньше.
Внимание! При такой перепланировке, несмотря на то, что стена остается на месте, придется согласовывать действия с БТИ и теплосетями. Так как увеличивается жилая отапливаемая площадь.
Полный снос подоконной части стены
Несмотря на небольшие масштабы, такая перепланировка получается затратной, так как:
- Владелец квартиры может захотеть нарастить габариты балкона, что сегодня стало очень популярным. В порыве улучшения жилищных условий люди доходят до настоящего маразма. В сети выложены фотографии с настоящими шедеврами подобной работы.
Увеличенный балкон на панельной хрущевке
- Необходимо построить прочный каркас для создания остекления. На этот каркас устанавливаются окна и глухая обшивка.
Изнутри стенки нужно качественно утеплить – слоев той же минваты нужно поставить не менее трех, иначе кухня начнет промерзать. В ней будет некомфортно находиться, а из-за резкого перепада температур начнет образовываться конденсат. Изнутри стены обшиваются черновой отделкой, поверх которой ляжет чистовая.
Утепление балкона экструдированным пенополистиролом
Совет! В кухне выделяется много водяного пара, из-за которого минеральная вата теряет свои теплоизолирующие свойства. Чтобы этого не происходило, материал закрывается пароизоляцией. Как вариант, можно использовать полимерный утеплитель, не боящийся воды.
- Работа с отопительной системой. При полном сносе перегородки, радиаторы отопления переносятся на балкон. Из-за увеличения площади отопления, нужно нарастить дополнительные секции. Даже если батарея остается на месте, ее меняют на более производительную.
Важно! Несогласованное увеличение площади отопления грозит немалыми штрафами. Пожаловаться на вас могут соседи сверху, у которых в квартире станет холоднее, так как наращенный радиатор отдаст больше тепловой энергии, которой не хватит соседу.
Если утепление балкона сделано некачественно, в комнате резко похолодает, а летом, наоборот, станет жарче.
Обратите внимание и на то, что при соединении балкона с жилыми помещениями теряется возможность использовать его по назначению. Места хранения организуются после этого на антресолях.
Фото примеры совмещения балкона с комнатой
Создание квартиры-студии
Другой вариант – убрать капитальную перегородку между кухней и гостиной, что позволит иначе расставить мебель и распределить основные площади (варианты планировка комнаты-студии с кухней представлена в статье). Выбирают такие планировки в основном молодые люди, живущие в одиночку или парами. При появлении ребенка такая планировка будет доставлять массу неудобств.
Современная квартира-студия в «хрущевке»
Освободившее пространство разграничивают легкими перегородками – сплошными и открытыми. В отдельной главе разберем способы зонирования, а пока говорим о преимуществах и недостатках такого объединения.
Из достоинств отметим лучшую естественную освещенность комнаты. Пространства визуально становится больше, и получается уйти от стандартных форм и площадей. Так как комната теряет привычные границы, можно смело расставлять мебель в ее центре. Строительство встроенной мебели не так сильно будет скрадывать визуальное пространство. Такие квартиры при умелом дизайнерском подходе смотрятся стильно и по-современному.
Барная стойка посреди «Хрущевки»
Недостатки чисто функциональные и всплывают они и становятся важными, когда на «мишуру» перестаешь обращать внимание.
На кухне необходима установка мощной вытяжки, которая будет заниматься улавливанием и удалением жира из воздуха. Использование этого прибора в студии создает множество хлопот.
- Во-первых, вытяжка создает много шума, особенно работающая на максимальных оборотах. Шум будет мешать и телевизор посмотреть, и музыку послушать, а про спящих детей вообще молчим.
- Во-вторых, ни одна вытяжка не удалит из комнаты запах готовящейся еды.
Мебель и текстиль в жилой части квартиры будут напитывать запахи. Это же относится и к температуре. Если зимой дополнительный подогрев не помешает, то летом он совершенно ни к чему. Если в комнате установлена сплит система, то открытость кухни станет для нее дополнительной нагрузкой.
Вытяжка над варочной поверхностью
Неудобство создает и прямая видимость/слышимость со всех точек в комнате. Человеку банально невозможно уединиться, чтобы поговорить по телефону.
Подводя итог, скажем, что этот прием спорный, и использоваться должен в крайних случаях, хотя, как говорится, на вкус и цвет…
Фото варианты квартиры-студии
Перепланировка санузла
Получение заветных квадратных метров возможно и за счет перестройки санузла.
Установка душевой кабины и стиральной машины в ванной
Так поступают, если санузел изначально разделенный. В таком виде он занимает много места, но если убрать перегородки, развернуть сантехнику, установить душевую кабинку и сделать независимым полотенцесушитель, пространства на коридор, кухню или гостиную останется больше.
Как вариант, ванную комнату можно сделать шире (варианты планировки ванной комнаты Вы найдете в статье), избавляясь от прихожей. Перегородка на кухню также переносится – в сторону зала.
Вернуться к оглавлениюПерепланировка однокомнатной квартиры «хрущевки» в двухкомнатную — варианты зонирования помещения
Ремонт в старом доме всегда выливается в существенные расходы, особенно, если до этого его не делали лет 20. Разбор стен и перенос их на новые места – это только полдела. Сегодня перегородки можно делать из легких материалов для каркасного монтажа за очень короткое время, а иной раз и этого не требуется.
Давайте рассмотрим все возможные варианты зонирования.
| Зонирование, фото: | Описание: |
Гипсокартонная глухая перегородка | Освободившееся внутреннее пространство после сноса старых перегородок можно разделить новыми так, как удобно владельцу квартиры. Лучшим материалом для этого является гипсокартон.![]()
|
Полуоткрытая перегородка | Интересно знать! Перегородки могут не разделать помещения наглухо, а только обозначать границы выбранных зон. Вот тут действительно у дизайнеров большой выбор материалов для исполнения.
|
Зонирование при помощи мебели | Если ремонт уже сделан, или просто нет желания устанавливать перегородки из строительных материалов, для целей зонирования можно применять мебель, изготовленную на заказ.
|
Зонирование декоративным брусом | Придать окончательную форму комнате можно при помощи установленного рядами бруса. Это решение подойдет под любые стили интерьера – меняться будет только внешний вид дерева |
Складная ширма на раме | Еще проще зонировать комнату при помощи складных ширм. Они могут быть закрытыми и открытыми, в зависимости от задумки дизайнера и потребности владельца квартиры. При необходимости перегородка раскладывается или убирается. |
Зонирование текстилем | Шторы и тканевые ширмы также создадут разную степень защищенности отдельных зон. Это решение используется для спален. |
Цветовое зонирование | Зонирование может быть чисто визуальным, без наличия перегородок вовсе. Используется для этого игра цвета и контрастов, материалов отделки, формы потолка, линий осветительных приборов, расставленной мебели и так далее.![]() На самом деле, этот способ является самым сложным, так как создатель интерьера должен обладать вкусом и чувством стиля, чтобы все смотрелось гармонично и одновременно выделялось. Необходимо знать законы сочетания оттенков. Все это важно, иначе результат не будет доставлять эстетического удовольствия. |
Видео: обзор ремонта и примеры дизайна однокомнатной квартиры в хрущевке
Вернуться к оглавлению
Заключение или перепланировка однокомнатной квартиры-хрущевки 30 кв. м
В завершение предлагаем конкретный пример перепланировки однокомнатной квартиры в «Хрущевке» для серии 1-510.
Планировка однокомнатной квартиры с балконом
Тут квартира превращена в студию. Прихожая оставляется в нетронутом виде, как изолированное помещение.
Из нее ведет две двери – одна в совмещенный санузел, а вторая в жилое пространство.
Линия перегородки прихожей продолжена и в спальне. За новой перегородкой размещается полноценная гардеробная, с просторными полками. Благодаря такому подходу, кровать можно расположить изголовьем к перегородке.
Планировка с размерами однокомнатной квартиры в хрущевке
Перед кроватью устанавливается узкая тумба, на которую ставится телевизор. Вместо нее можно сделать открытый стеллаж для большей надежности.
Оставшееся пространство освобождается от прочих шкафов. В угол напротив телевизора найдется место для дивана, а расстояние между ними будет чем-то вроде гостиной. На оставшейся площади легко уместится обеденный стол.
Дизайн однокомнатной хрущевки: особенности работ
В свое время малогабаритные квартиры, известные как хрущевки, смогли ликвидировать жилищный кризис в стране. Но оставался жилищем надолго. В настоящее время они уже не соответствуют современным требованиям к квартирам и их оформлению.
Рассказывать о недостатках можно бесконечно. Но это не повод отказываться от жилья или выбирать место в новом микрорайоне, а на окраине. Самый разумный вариант оформить однокомнатную хрущевку и при этом получить современное комфортное и комфортное жилье.
Современный дизайн однокомнатной хрущевки
При оформлении небольшого пространства используется несколько приемов, позволяющих его визуально расширить и адаптировать к современным условиям.
Дизайнерские хитрости для расширения пространства
Осуществляя дизайн однокомнатной хрущевки, специалисты советуют уделять особое внимание пропорциям используемой мебели. В маленькой комнате громоздкая тяжеловесная конструкция смотрится плохо. Поэтому большие столы и шкафы лучше исключить, а использовать аналоги меньшего размера.
При отделке хрущевки выбросьте громоздкую мебель
Всем известны следующие правила, но при выполнении таких работ, как оформление однокомнатной хрущевки, их просто необходимо соблюдать:
1.
Используйте только светлые тона для покрытия поверхности. Однако придерживайтесь следующего правила: самыми светлыми должны быть стены. Потолок может быть темнее на тон. А вот полу допускается более темный оттенок. Использование белого цвета — отличная идея. Но в нем есть масса оттенков, позволяющих визуально придать помещению большие размеры.
Декорирование стен светом зрительно увеличит пространство
2. Подбирайте оттенок поверхностей с учетом создаваемого настроения: бодрящий, радостный, умиротворяющий.
3. Для помещения не следует использовать более трех основных цветов. Этого известного правила в масштабах небольшой площади лучше придерживаться, чтобы визуально не загромождать пространство и не превращать его в склад вещей и мебели.
При оформлении не используйте более трех основных цветов
4.Старайтесь избегать крупных рисунков и принтов на поверхностях. Если возникнет необходимость, нанесите узор выборочно на одну или несколько сторон, а остальные оставьте раскрашенными в подходящей цветовой гамме.
5. Увеличить пространство позволяет использование зеркал. При их размещении обратите внимание, чтобы рабочая зона не попадала на отраженные поверхности.
Используйте зеркальные поверхности для визуального увеличения пространства
6. Не украшайте подоконники традиционными цветочными горшками. Они только сократят пространство и сделают его меньше.
7. Ничто так не увеличивает пространство зрительно, как дополнительный свет. Может исходить из окон, это не загромождает оконные проемы и не создает препятствий на пути солнечного света. Не экономьте на искусственном освещении. В противном случае комната может стать своеобразной кладовой.
Пустые оконные проемы не препятствуют проникновению света
8. Хорошее дизайнерское решение, позволяющее значительно расширить комнату, именно на одной стене разместить 3D обои с перспективой — рисунок уходящий вдаль.
3D обои помогут расширить пространство комнаты
Эти приемы помогают расширить пространство и придать ему визуально большие объемы. Но это не единственные способы увеличить комнату.
Перепланировка помещения
Наибольшее расширение площади можно получить, сделав перепланировку комнаты однокомнатной квартиры. Эти работы в обязательном порядке должны быть согласованы со службами соответствующих организаций и допустимо выполнять только после консультации со специалистами.Потому что с несущими стенами проводить какие-либо эксперименты не допустимо. Они могут повлиять на целостность дома.
Несколько советов по перепланировке хрущевки:
1. Если в квартире есть балкон, то переоборудовав его и визуально связав с жилым районом, можно значительно увеличить площадь. Дополнительное пространство используется под шкафом, чтобы расширить зону отдыха, как гардеробную.
Присоединение балкона к комнате
2. Особенностью малогабаритных квартир является наличие кладовых, часто сложной сложной формы.Попробуйте добавить их в жилое пространство или в ванную комнату. В первом случае вы получите дополнительную жилую площадь. Во втором варианте перепланировки стиральная машина впишется в небольшую ванную комнату и освободит такое необходимое место на кухне.
Оборудование рабочего места в кладовой
3. Часто размер квартиры увеличивают за счет объединения коридора, кухни и комнаты в единое целое. В результате однокомнатная квартира превращается в студию из одной комнаты и санузла.
Студия из однокомнатной хрущевки
4. Чтобы визуально расширить пространство, иногда нет необходимости сносить или переносить стены. Вы можете делать дополнительные арки, убирать или перемещать дверные проемы и получать порталы. Эти техники частично устраняют препятствия и увеличивают объемы.
Отсутствие дверей добавит объема комнате
Хорошо расширяет пространство помещения, зонируя его. В этом случае получается несколько независимых зон, разделенных небольшими ширмами или светлыми стенами.Использование перегородок — вертикальных конструкций также способствует увеличению высоты комнаты, придает ей современный вид.
Зонирование пространства в однокомнатной хрущевке
Не используйте распашные двери при проектировании однокомнатной хрущевки. Для того, чтобы они по всем правилам распахивались, необходимо около метра площади. Использование конструкций типа купе или гармошки поможет найти еще несколько квадратных метров дополнительного пространства.
Двери-купе сэкономят пространство квартиры
Хорошо смотрятся в маленькой комнате фальшпанели.Обычно они лишь частично разделяют пространство, но могут использоваться как опоры при размещении техники, бытовой техники, телевизоров или элементов декора.
Запрещенные моменты при проектировании однокомнатной квартиры
При начале работ, связанных с изменением планировки квартиры, есть некоторые ограничивающие моменты, что делать нельзя ни в коем случае:
1. Как ни чешутся руки и желание перенести ванную комнату не велико, не делайте этого. Поставив санитарное помещение над чьей-то жилой комнатой, можно впоследствии нанести соседям непоправимый вред.
2. Не перекрывайте существующую систему вентиляции в доме.
3. К газопроводам, проходящим по квартире, должен быть обеспечен постоянный доступ. Это влияет на безопасность проживания.
Дизайн однокомнатной хрущевки: особенности конструкции помещения
В маленькой однокомнатной квартире несколько отдельных независимых комнат. Но именно их особая отделка придает квартире современный законченный вид. Чтобы понять, как можно обустроить комнату и какие методы использовать в этом случае, мы рассмотрим каждую комнату отдельно.
Дизайн кухни
Кухонное пространство в малогабаритной квартире самое маленькое. На практике в этих счетчиках нет возможности протиснуть плиту, бытовую технику, рабочую поверхность, холодильник, шкафы для посуды. Поэтому лучший эффект получается, если кухня совмещена с комнатой и даже коридором в единую комнату. В этом случае кухонное пространство отличается специфическим микроклиматом и возникает необходимость его частичного разделения.
Объединение кухни и комнаты в единое пространство
В качестве разделительных элементов могут применяться следующие приемы:
1.Небольшая стена или занавеска, не доходящая до стены.
2. Можно разделить комнаты барной стойкой. Он не только выделяет кухню, но и может использоваться для хранения кухонных принадлежностей и оборудования.
Разделение квартиры барной стойкой
3. Для разделения можно использовать разные покрытия, обои на стенах. Если в комнате ковролин или линолеум, для пола кухни можно использовать керамическую плитку. Стены из жилой зоны можно оклеить обоями, а возле плиты можно использовать специальный фартук.Разделяя помещения, не забывайте, что они остаются частью единого целого, а значит, должны объединяться вместе за счет единого стиля оформления.
Зонирование помещения напольным покрытием
4. Делает комнату над натяжным потолком глянцевой поверхностью.
Глянцевый натяжной потолок зрительно увеличит высоту потолка
5. Разделение комнаты на зоны позволит использовать в комнате несколько источников освещения. Это нужно не только для увеличения визуальных габаритов, но и для создания нормальных условий для работы и учебы.В большом помещении одного источника света будет недостаточно.
Зонирование светом в однокомнатной хрущевке
6. Во избежание распространения запахов приготовленных продуктов по квартире необходимо заранее предусмотреть и установить над поверхностью плиты хорошую вытяжную систему. Желательно, чтобы он был оборудован осветительными приборами.
Приведенные выше варианты дизайна помогут организовать пространство при объединении комнаты и кухни в единое целое.В том случае, если это технически нежелательно или невозможно, воспользуйтесь специальными приемами, чтобы просто расширить кухонное пространство:
1. Старайтесь как можно меньше отводить под мебель площади пола. Для размещения кухонной утвари и бытовой техники используйте подвесные полки и шкафчики. В качестве рабочего стола используйте стол для еды. Эти приемы помогут расширить пространство и получить несколько метров свободного грунта.
Функциональная мебель освободит место на кухне
2.Хороший эффект и визуальное увеличение пространства достигается за счет использования глянцевых блестящих поверхностей мебельных фасадов.
Светлые мебельные фасады создают эффект просторного помещения
3. Классическое сочетание белого и черного за счет правильного подбора количества каждого из цветов и места их использования создает стильный современный интерьер и позволяет визуально сдвинуть шкафы к стене.
Монохромный дизайн кухни в однокомнатной хрущевке
4.Стены и мебель, используемые для отделки стен и мебели, окрашены в белый цвет. В этом случае лучше заранее уделить внимание и не превращать кухню в зону, напоминающую помещения больницы. Разнообразие вносит разноцветные яркие пятна, задающие настроение в комнате.
Яркие цветовые акценты разбавят однотонное пространство кухни
5. Расширяет пространство установленным по периметру помещением освещением.
6. Увеличьте высоту комнаты обоями, которые наклеиваются максимально близко к потолку.
Дизайн однокомнатной хрущевки: спальная зона
В масштабе маленькой однокомнатной квартиры сложно выделить место для установки кровати, тем более организовать полноценную зону для спать. Но полноценный отдых на качественном ортопедическом матрасе важен как для выздоровления, так и для здоровья.
Площадь спальни в однокомнатной хрущевке
Выполняя дизайн однокомнатной хрущевки, постарайтесь найти место для кровати и выделить для нее специальную зону.Если работы на таком небольшом пространстве выполнить сложно, попробуйте создать чисто условное разделение помещения за счет использования разного, но комбинированного рисунка на обоях.
Зонирование пространства квартиры перегородкой
Отделка ванной комнаты
Ванная комната редко бывает в однокомнатной квартире большой. В хрущевке это образец компактности и чаще всего унитаз совмещен с ванной. Для того, чтобы комната выглядела хоть немного больше, можно попробовать перенести сантехнические приборы и получить несколько лишних метров.
Санузел в однокомнатной хрущевке
Несколько советов помогут осуществить перепланировку:
1. Лучше убрать из ванной все приборы и вещи, не имеющие прямого отношения к принятию водных процедур. Пространство надо постараться как можно больше разгрузить, все лишнее выбросить.
Убрать все лишнее из ванной
2. Лучшее решение для ванной — использование подвесных конструкций. Они не будут загромождать простор пола, и всегда найдется место, где можно повесить мебель.
Подвесные конструкции — отличное решение для маленькой ванной
3. Для небольшого помещения ванную лучше не использовать, предпочтение следует отдавать душевой кабине.
Душевая кабина не занимает много места
Дизайн однокомнатной квартиры: требования к мебели и аксессуарам
В большинстве случаев помещение перегружено и оформлено не небольшими габаритами, а чрезмерным количеством крупногабаритной мебели и наличием эффектных аксессуаров.Чтобы получить современную стильную комнату, попробуйте следующие советы профессиональных дизайнеров:
1. Избегайте использования в интерьере массивной массивной мебели, она утяжелит пространство. Приятно смотрится маленький, легкий дизайн, возможно, даже складной.
Не загромождайте пространство массивной мебелью
2. На небольшой площади квартиры сложно разместить много мебельных гарнитуров. Поэтому лучше обойтись минимальным запасом мебели. При строительстве интерьера старайтесь отдавать предпочтение многофункциональным вариантам.
Отдавайте предпочтение многофункциональной мебели
3. Для того, чтобы рационально использовать пространство, хорошим помощником станет угловая мебель. Он занимает ненужное угловое пространство и одновременно расширяет свободное пространство внутри помещения.
Угловая мебель в интерьере однокомнатной квартиры
4. Не перегружайте комнату подвесной мебелью. Необычные несъемные конструкции или полки благодаря своему исполнению кажутся проще, чем они есть на самом деле. Наполните комнату легкостью и воздухом.Визуально они словно парят над полом, но при этом освобождают пространство. Особенно это касается бытовой техники, телевизоров.
Подвесная мебель не загромождает комнату
5. Помещение становится больше, если оно не перегружено мебелью и аксессуарами. Для маленькой комнаты лучше не использовать ковры, большие постеры. Не нужно загромождать пространство сотнями подушек, вешать тяжелые шторы, устанавливать множество ваз или салфеток. Лучше смотреть на небольшую комнату с минимальным количеством аксессуаров.
Интерьер однокомнатной хрущевки с минимумом фурнитуры
6. Если в квартире есть библиотека, то этого достаточно. Нет необходимости утяжелять интерьер какими-либо элементами декора.
Правило прихожей
Хрущевки часто вообще не имеют прихожей, либо она довольно небольшая по размерам. Поэтому на его просторы так легко положить что угодно. От шкафов лучше вообще отказаться или обойтись небольшим, специально изготовленным шкафом.
Шкаф в коридоре однокомнатной хрущевки
Желательно, как правило, лишать помещения естественного освещения светлых тонов.Из мебели использовать в интерьере только зеркало, тумбочку и пуфик — то, без чего нет выхода.
При оформлении прихожей выбирайте светлые тона
Эти советы показывают, что небольшое пространство однокомнатной квартиры можно сделать современным, отвечая повышенным потребностям населения. Конечно, для выполнения работ потребуются строительные материалы, и потребуется немалый объем работ. Иногда потребуется провести полноценную перепланировку пространства, полностью поменять мебель.
Но эти меры дадут хороший результат и наполнят квартиру простором и уютом. Дизайн однокомнатной хрущевки, выполненный по всем правилам, полностью преобразит комнату, сделает ее стильной, придаст особый шарм. Главное — желание жителей. Не бойтесь применять новые дизайнерские решения и экспериментировать. В этом случае результат вас удивит.
Фотогалерея — дизайн однокомнатной хрущевки
Видео
Автор: Михаил Бонд
можно ли без перепланировки обойтись? Однокомнатный уголок без балкона хрущевка
Однокомнатная «хрущевка»: тонкости планировки и дизайна.Дизайн квартиры Хрущева: можно ли обойтись без перепланировки? Однокомнатный уголок без балкона хрущевка
Несмотря на то, что большинство пятиэтажек, построенных в конце 1950-х годов, снесены или готовятся к сносу, несколько серий хорошо известных (но не слишком любимых) хрущевских построек по-прежнему относятся к категории «невыносимых серий». . » Это, например, панели серии 1-515, серии блоков 1-510 и кирпичные серии 1-511, 1-447.Поэтому переделка хрущевки до сих пор остается одной из самых обсуждаемых тем на дизайнерских форумах. В этот раз мы рассмотрим сразу несколько квартир в таких домах. Чаще всего это пятиэтажные дома (есть трех-четырехэтажные варианты) без лифтов и с жилым цокольным этажом. Толщина наружных стен в зависимости от серии 30-40 см, внутренних несущих стен 20-30 см, перегородок 8 см.
Самая главная объединяющая черта таких квартир — очень низкие потолки (около 250 см, но в ранних вариантах высота достигает 270 см) и небольшие площади как жилых, так и нежилых зон квартиры.Поэтому по возможности целесообразнее увеличивать, расширять и объединять пространство в этой квартире, а не дробить его. Однокомнатные квартиры невыносимой серии похожи по планировке, немного отличаются по площади, а также имеют разное расположение окон и балконов: в угловых квартирах может быть два окна, в неугловых — одно. В каждой квартире есть балкон. Большой плюс в том, что все перегородки внутри квартиры не несущие, а значит, их легко утилизировать.
Некоторые варианты подходят для всех перечисленных серий, некоторые — только для одной, но все они могут быть полезными источниками идей. Причем в большинстве случаев еще до начала ремонта перепланировку 1-комнатной хрущевки необходимо согласовать и узаконить.
Такие планировки квартир встречаются в домах серий 1-511, 1-447, 1-515 / 5. Вариант с балконом и еще одним окном — угловая квартира. Такая планировка хрущевки может как добавить неудобства, так и наоборот — открыть много новых возможностей.
Вариант однокомнатной хрущевки с одним окном и балконом встречается в сериях 1-515, 1-511 и других. Эта планировка, в отличие от других, содержит отдельный санузел и коридор. Это же пространство в других планировках формально считается гостиной, что ограничивает возможности перепланировки.
Здесь балкон находится на длинной стене комнаты; в остальном макет не отличается от первого варианта. Такие квартиры встречаются в серии 1-510.
1.На все серии
Редевелопмент
Один из самых очевидных и беспроигрышных вариантов перепланировки однокомнатной маленькой хрущевки — превращение ее в студию. В этом случае прихожая остается изолированным помещением, за дверью которого находится одно общее пространство, состоящее из спальни, гостиной и кухни. Также в углу за перегородкой находится гардеробная, а остальное пространство освобождено от ненужных шкафов.
Телевизор, разделяющий спальную и жилую зоны, можно повернуть в любую сторону, небольшой обеденный стол при необходимости раздвинуть.В ванной комнате ванна, стиральная машина, умывальник и туалет.
Детали
Помещение: изолированная прихожая, санузел общий, гардеробная за перегородкой, совмещенная кухня-гостиная. Подходит как для одного арендатора, так и для пары, для гостеприимных хозяев и ценителей порядка. Для согласования планировки потребуется заменить газовую плиту на электрическую. Достоинства планировки: отдельная гардеробная, свободная жилая площадь. Недостатки планировки: нет изолированных жилых комнат.
Даже в небольшой квартире можно уделить прихожей особое внимание и сделать ее интересным самостоятельным пространством.
Чтобы отделить спальню или гардеробную, необязательно возводить стену с дверным проемом — достаточно просто отгородить комнату, оставив проходы шириной 65-90 см с одной или двух сторон.
В случае небольшой студии стоит обратить внимание на скандинавский стиль интерьера. Здесь важна легкость и отказ от лишних деталей, что поможет зрительно расширить пространство квартиры.
2. Для серии 1-515, 1-511
Редевелопмент
В данном случае упор делается на большую кухню, санузел и санузел. Благодаря коридору увеличен размер ванной комнаты, поэтому ванна, стиральная машина и умывальник размещены в отдельной ванной комнате, а умывальник и туалет — в смежной ванной комнате. Такая перепланировка хрущевки позволяет добавить кухне пространство бывшего коридора — перегородка практически полностью снесена.В результате на кухне остается много места для большой рабочей зоны, широкого холодильника и стола на четыре-шесть человек. В гостиной есть раскладывающийся диван, большой шкаф у стены, кресло и телевизор.
Детали
Помещения: санузел раздельный, кухня и спальня-гостиная, прихожая. Подходит тем, кто мало времени проводит дома; для тех, кто любит готовить и собирать гостей за столом. Для согласования планировки потребуется заменить газовую плиту на электрическую.В других сериях коридор формально является частью комнаты, но иногда можно договориться о переносе в него санузла. Плюсы планировки: большая удобная кухня и санузел; свободное место; нет ненужного коридора. Минусы планировки: отсутствие полноценной кровати и отдельной спальни.
Такая перепланировка однокомнатной хрущевки хороша тем, что появляется большая кухня. Если очень постараться, можно спланировать кухню так, чтобы в ней все поместилось, и каждый предмет занял свое логическое место.Усилия, приложенные на стадии проекта, окупятся радостью от работы на такой кухне.
Вам не нужно загромождать стену гостиной шкафами или подставками под телевизор. Иногда лучшее решение — повесить на стену и оставить пространство вокруг свободным.
Маленькая хитрость для отдельной ванной — наличие умывальника небольшого размера. Это решает массу проблем и добавляет помещению функциональности. Такое решение актуально не только для хрущевок, но и для любой малогабаритной 1-комнатной квартиры.
Всем привет, дорогие борцы. Я нахожусь на этом замечательном сайте около трех лет, но только сейчас мои руки дошли до того, что написали о моем ремонте.
Недавно я выложил видео «РУМ-ТУР» по всей квартире, если кому интересно, можете посмотреть его здесь:
Также есть видео о том, как я собираю КРОВАТЬ и ГАРДЕРОБ
. Итак, в 2013 году мы купили в ипотеку 1-комнатную квартиру в Москве площадью 30 кв. М. Площадь комнаты 18 метров.Это наша первая собственная квартира в нашей жизни и, конечно же, первый ремонт в нашей жизни. Капитальный ремонт делали предыдущие арендаторы, поэтому никаких глобальных ремонтных работ мне не пришлось тратить …
Ремонт был очень экономичным, все материалы были куплены самые простые и дешевые в Леруа Мерлен, а всю работу сделал я. сам своими руками. Я не хотел вкладывать деньги в эту квартиру, потому что изначально планировалось прожить здесь не более 5 лет, а в планах еще продать эту квартиру в ближайшем будущем и переехать в квартиру побольше! Многие считают, что во временных жилищах такой масштабный ремонт делать не стоит, но после 10 лет скитаний по съемным бабушкиным квартирам с ужасным ремонтом мне так захотелось завести собственное гнездышко и создать в нем хоть что-то необычное, свое. собственными, чтобы воплотить в жизнь всевозможные накопившиеся так сказать фантазии.В общем получил, так сказать!
Так как я большой любитель скандинавско-европейского стиля, сразу решил, что во всей квартире будут белые стены и мебель. На этом сайте меня вдохновили идеи, и многое я отсюда нагло украл. Ладно, так сказать, от слов к картинкам.
Помещение до ремонта.
В целом все было очень достойно. На полу был ламинат, который мы решили оставить.На стенах были обои, мы их содрали и покрасили стены белой моющейся акриловой краской.
Противоположная сторона комнаты
Первоначально был огромный проем между гардеробной и кухней.
Для начала я уменьшил этот огромный промежуток между комнатой и коридором с помощью гипсокартона.
Сначала сделал пластиковую дверь гармошкой, но она оказалась ужасно неудобной и позже заменил ее тряпичной шторкой (фото будет с шторкой уже в конце)
Антресоль никогда не любил, всегда забит всяким хламом и конечно не люблю, когда балкон завален всяким хламом.Поэтому очень захотелось придумать какое-то хранилище для вещей, которое бы не занимало много места в квартире, и было решено сделать кровать-чердак, совмещенную с гардеробной, потому что я ненавижу гардеробы. Сидя на этом сайте, я нашел интересную идею. Я искал кровать и гардеробную в блоге IROSHA, только у нее есть пустое место под кроватью, и я решил использовать это пространство с пользой.
Итак, купил доски и рейки, приступаю к сборке каркаса для кровати размером 180 * 200 см.
Поподробнее выложу, как построил кровать, вдруг кому пригодится, потому что лично я теперь доволен этой кроватью как слон …
Сначала я просто прикрепил эти ножки к кровати, но это была плохая идея, потому что кровать раскачивалась из стороны в сторону. Никаких схем возведения таких конструкций у меня не было, действовал методом проб и ошибок.
Чтобы кровать была устойчивой, я подумал поставить ее на пеноблоки.
Снаружи это было довольно забавно, конечно, я положила два пеноблока друг на друга и приклеила их сначала друг к другу, а затем к стене плиточным клеем.
Она поставила кровать сверху и приколола ее по углам к пеноблокам, и тут же кровать приобрела устойчивость и перестала раскачиваться.
Высота кровати от пола 120 см.
Итак, под кроватью я решил сделать мини-кладовку, а вход в кладовую будет из гардеробной, которую я решил сделать слева от кровати.
Начинаю делать стену из гипсокартона для гардеробной.
Кстати, это справа внизу и там будет вход в кладовку под кроватью.
Начинаю делать стену для входа в гардеробную из гипсокартона.
Итак, гардеробная получилась длиной 200 см (как и кровать), а шириной 150 см.
Внутренняя часть гардеробной оклеена обычными бумажными обоями.
Начинаю сверлить шпатлевку для гардеробной. Купила в Леруа Мерлен белые мебельные доски, все доски глубиной 30 см, по длине распилала дома лобзиком.
Если стоять в гардеробной лицом к стене и спиной к окну, то вход в туалет будет справа, хорошо видно на этом фото
А это, собственно, вход в ту самую кладовую из гардеробной
Внутри она тоже обшита гипсокартоном и оклеена обоями, и подключена лампочка.
Все наши вещи помещаются под кроватью, включая чемоданы, обувь, подушки / одеяла и т. Д. И еще остается много места. Это очень удобно, потому что теперь мой балкон совершенно пустой, и имеет чисто декоративное назначение, я просто стою на нем любуясь видами на красоту. В общем, эта кладовая — вещь очень нужная и практичная.
Хотя высотный потолок в кладовой всего 120 см, достать оттуда нужные вещи, слегка наклонившись, не мешает.
А в гардеробной подходит вся одежда, как летняя, так и зимняя, и верхняя.
Верхние полки крепятся на расстоянии 200 см от пола. Нижние стержни находятся на высоте 100 см от пола, верхние стержни — на высоте 190 см от пола.
Здесь справа вы можете увидеть вход в кладовую.
Накладываю на планки кровати лист фанеры так, чтобы на нем уже был матрас.И я перехожу к ступеням к кровати. Сделала их так же, как полки в гардеробной, из белых мебельных щитов (глубиной 30 см).
Снаружи оклеила стены кладовой обоями под покраску, кровать снаружи тоже была обита гипсокартоном и оклеена обоями под покраску.
Начинаю клеить вагонку ПВХ на межкомнатные стены возле кровати, клеить жидкие гвозди.
Когда я покупал эту вагонку, я еще не знал о существовании деревянной вагонки и думал, что там только такой ПВХ.Только позже выяснилось, что вагонка тоже деревянная, смотрелась бы намного красивее. Но вот эту сейчас сдирать и переделывать пока не потрескается 🙂 А вот за два года ни разу не треснула на удивление 🙂 Зато вокруг кровати пвх накладка очень практична, т.к. именно эти места вокруг матраса периодически пачкаются, а подкладку из ПВХ легко протереть влажной тряпкой. Но это больше подойдет для ванной, ну да ладно.
Пристроил зеркальную дверь купе к гардеробной.Дверь уже продавалась с рельсами в Леруа Мерлен.
Просверлил полочку поверх обивки над кроватью (мебельный щит от Leroy 120 * 20 см) и наклеил белые обои с цветком, купленные в Leroy.
Вот более близкие обои
Из купленной в Икеа ткани сшила шторку в дверной проем.
Так вот в общем виде уже законченный ремонт.Заранее хочу сказать, что кровать находится на очень удобной высоте, я не бьюсь головой о потолок, между кроватью и потолком еще много места и места. Высота потолков в квартире 250 см. Расстояние между матрасом и потолком примерно 110 см. Этой высоты нам вполне хватает, мы никогда не бьемся головой о потолок!
Прошло 2 года с момента ремонта, и я хочу сказать, что кровать еще не развалилась, она твердо стоит на ногах, не шатается, ничего нигде не сломалось и не потрескалось.Я просто очень боялся, что такой странный дизайн продержится недолго, но все оказалось даже лучше, чем я ожидал. Я очень доволен. Сначала было немного напряженно спуститься / залезть на такую высокую грядку все время, но я быстро к этому привык, и теперь делаю это так же легко, как обезьяна, прыгаю взад и вперед.
А это общий вид со стороны раздевалки
Ну вот и все.Многие из них меня не очень устраивали, потому что уже по мере того, как шла реконструкция или после нее, продолжали появляться идеи и что-то перестало нравиться из того, что уже было сделано, но на переделку не оставалось ни времени, ни сил, поэтому , она оставила все как есть. Время от времени я что-то меняю по мелочам, добавляю, но серьезных изменений больше не предвидится.
П.С. Прочитав ваши отзывы, пришла в голову идея вместо двери купе в гардеробную сделать глухую белую дверь.Но в связи с этим родился небольшой вопрос, очень нужно большое зеркало в комнате, чтобы при примерке вещей я хотел смотреть в зеркало в полный рост, именно по этой причине изначально была зеркальная дверь купе. куплен. Просто дверь-купе — единственное большое зеркало во всей квартире, в гардеробной есть зеркало, но маленькое, а большое туда совсем не влезет. Соответственно, какое зеркало, по вашему мнению, купить для комнаты и куда его прикрепить? Может, в гардеробную слева от будущей слепой двери? Или даже купить стоячее зеркало на выдвижных ножках (опять же, где его разместить в комнате)? А еще подумываю сделать дверь-жалюзи вместо занавески на ступеньках.Будет ли в той же комнате бюст с решетчатыми дверьми? Потому что в моем кухонном шкафу тоже есть жалюзи. Боюсь не переборщить :))
Позже поставлю ремонт в остальных частях квартиры.
Спасибо за внимание!
Времена, когда квартиры раздавались бесплатно, ушли навсегда. А не так давно, когда страна начала восстанавливаться после войны, в эпоху крупнопанельного домостроения, начиная с 1955 года, жильем пытались обеспечить если не все, то многие.Конечно, эти квартиры, которые в простонародье условно называют «хрущевками», далеки от совершенства: слишком тонкие и неровные стены, низкие потолки, неудобная планировка, звуко- и теплоизоляция не на должном уровне. Но построили быстро, и хрущевки свою задачу выполнили полностью.
Всего за 9 лет четверть населения страны обеспечена жильем. И по сей день хрущевки составляют значительную часть жилого фонда. Они уступают место новым домам только в центральных районах столицы и других крупных городах, в провинции хрущевки еще долго простояют.Их ресурс, составлявший ранее 50 лет, был пересмотрен и увеличен до 150 лет с учетом капитального ремонта. Так что есть смысл продумать конструкцию хрущевки и сделать капремонт обязательно есть.
Да, в советское время и радовались таким квартирам: пусть это будет жилье, где всего одна комната, да и та маленькая, но своя. Нормы жилой площади рассчитывались не из соображений комфорта, а с учетом лишь необходимого для физиологии человека минимума.Теперь, когда потребности изменились, хозяева хрущевок хотят как-то преобразить свое жилище, чтобы добиться уюта и функциональности.
Вариантов оформления хрущевки на самом деле не так уж и мало, особенно если они предусматривают перепланировку, например, разделение одной неудобной комнаты на 2 комнаты, выполняющие разные задачи, или расширение узких и маленьких комнат за счет проходных зон. Некоторые варианты более удачны, некоторые менее, но одно можно сказать наверняка, даже квартира такой небольшой площади с низкими потолками может стать современным жильем.
Редевелопмент
Пожалуй, интересный дизайн в хрущевке можно создать только при грамотной перепланировке. Квартиры не отличаются большой площадью, но их существенный недостаток еще и в том, что комнаты часто бывают узкими, неудобными, с проходной зоной, нефункциональными коридорами. Искоренить эту проблему можно, только прибегнув к перепланировке.
хрущевских домов построены по проектам нескольких типовых серий. Они довольно мало отличаются друг от друга, но объединяет их одно — небольшая площадь:
.- Однокомнатные — 29-33 м 2,
- Двухкомнатные квартиры — 30-46 м 2,
- Трехкомнатные квартиры — 55–58 м 2.
При составлении проекта перепланировки потребуется решить ряд проблем. Одна из проблем будет связана с легализацией перепланировки, ведь далеко не каждый дизайнерский «полет фантазии» может быть реализован на законных основаниях. Для начала нужно получить разрешение на перепланировку.
Первая сложность может возникнуть с определением несущих стен. К счастью, практически во всех хрущевках внутриквартирные перегородки не выполняют несущую функцию, а лишь разделяют пространство квартиры на комнаты, поэтому их легко снести, сделав капитальный ремонт.Однако бывают исключения, в панельных хрущевках тоже можно встретить несущие стены внутри квартиры. На всякий случай надо сказать о том, как определить несущую стену в квартире:
- Согласно плану квартиры. Получить такой документ можно в БТИ. Вам будет предоставлен типовой план квартиры с обозначением несущих стен и перегородок.
- Визуально:
- Несущая стена будет толще перегородки.В хрущевке толщина несущей стены без отделки будет не менее 12 см.
- Межэтажные перекрытия всегда поддерживаются несущими стенами.
Если стена еще несущая, то проем необходимо укрепить металлическими или деревянными опорами. Перепланировка, предусматривающая частичный демонтаж несущей стены, может проводиться только с разрешения жилищной инспекции, строго соблюдая утвержденный проект.
Даже если несущие стены не задействовать в перепланировке, может возникнуть ряд проблем. Например, если перепланировка связана с расширением «мокрой зоны». По закону расширять ванную и туалет можно только за счет нежилого помещения, то есть коридора, кухни или кладовой. Единственное исключение — для жителей первых этажей, там данные ограничения не действуют.
В хрущевских домах часто бывает небольшой функциональный коридор, соединяющий прихожую и кухню, за счет чего было бы удобно расширить ванную комнату.Вот оно на схеме:
По сути, это коридор, но на планах этот участок обозначен как жилая зона, так что остается либо смириться с этим, либо действовать в два этапа: сначала отделить этот участок перегородкой и оформить перепланировка жилого помещения в коридор, затем получение разрешения на еще одну перепланировку — расширение санузла и оформление документов по всем правилам. Те. Вам предварительно необходимо будет оформить перепланировку такого типа:
Кстати, увеличение санузла за счет прохода потребует дополнительной гидроизоляции.
Если планируется объединить кухню и гостиную с целью создания просторной гостиной-столовой, то здесь можно столкнуться с еще одним ограничением: совмещение жилого помещения с кухней, при наличии газовой плиты не допускается. Выхода два: поменять печь на электрическую, либо поставить легкую раздвижную перегородку (после прихода комиссии ее можно будет демонтировать).
Стоит задуматься над решением ряда других вопросов, о которых речь пойдет ниже.
Утепление … Так как утеплитель в хрущевских домах недостаточный — летом жарко, зимой холодно, в угловых квартирах стены часто промерзают — следует усилить теплоизоляцию стен. К тому же внутренняя изоляция в хрущевке не применима, так как реализация этого метода приводит к смещению точки росы внутри стен. В результате начинают разрушаться стены, особенно кирпичные. Возможна изоляция с обшивкой внешних стен полистирольными плитами или обрешеткой и минеральной ватой на первых этажах здания.
Замена остекления … Старые деревянные окна желательно заменить на новые пластиковые. Здесь вам придется столкнуться с некоторыми трудностями. Во-первых, в некоторых хрущевках (панельных) домах нет подоконников, а во-вторых, оконный проем скорее всего будет неровным. Если обратиться в компанию с опытом, то с установкой окна проблем не возникнет, так как опыт замены окон в хрущевке накоплен. О чем следует хорошенько подумать:
- какой ширины будет подоконник,
- как утеплить окно.
Обычно подоконник стараются сделать шире, чтобы было место для комнатных растений … В хрущевках, где изначально не было подоконников, этого следует избегать. С одной стороны, опорной площади для широкого подоконника недостаточно, а значит, конструкция будет очень неустойчивой, с другой стороны, широкий подоконник вызовет нарушение теплоотдачи. Кстати, штукатурные откосы необходимо полностью демонтировать.
Идеи перепланировки
Итак, обозначены основные проблемы перепланировки и ремонта в хрущевке.Теперь о конкретных идеях перепланировки.
Однокомнатная хрущевка
Казалось бы, можно в качестве исходных данных придумать однокомнатную хрущевку? Оказывается, можно увеличить ванную комнату и сделать отдельную спальню, хотя бы сделать перепланировку удобнее — вполне возможно.
Типовая планировка однокомнатной квартиры в хрущевке — коридор на кухню и «арка» в гостиную.В некоторых сериях «арка» надстраивалась, и проход в комнату располагался прямо напротив входной двери … Иногда в проект входила кладовая. В угловых квартирах на длинной стене гостиной было еще одно окно.
| Вариант перепланировки | Описание перепланировки |
| | Это вариант перепланировки, где «арка» застраивается и превращается в обычный дверной проем, функциональность гостиной в этом случае увеличивается, так как вдоль увеличившейся в длину стены можно положить, например, диван.Дверь в туалет также переносится, за счет округления пространства прихожая становится просторнее. Теперь в нем с комфортом можно разместить угловой шкаф … Кухня осталась неизменной. |
| | Здесь видно, что полностью снесены все межкомнатные перегородки, включая перегородки ванной комнаты. Помещение полностью перестроено. Санузел расширен коридором, теперь достаточно места для установки стиральной машины.Раковину, кстати, переносят на противоположную стену, для чего потребуется подвод канализации. Перегородка между гостиной и кухней демонтируется, стена между ванной и кухней удлиняется за счет надстройки старого дверного проема: можно разместить полноценный кухонный гарнитур. Минус перепланировки — уменьшена площадь прихожей, но теперь в гостиной удобно размещать шкаф, тем более что в прихожей есть место для вешалки и полочек для обуви. |
| | Еще один вариант трансформации пространства через проход. В этом случае меняется ориентация ванной комнаты — она немного увеличивается по площади, но основной упор делается на увеличение площади кухни. Частично интегрируется с гостиной за счет широкого проема, в который можно установить раздвижные перегородки. |
| | Здесь много внимания уделяется местам хранения вещей, а также есть место для двухспальной кровати, она ничем не отделена от зоны гостиной, а находится в уютном уголке.Кухня совмещена с гостиной, устроена отдельная ниша для холодильника. С помощью дизайна можно обыграть кухню, гостиную и спальные зоны. Обратите внимание на ванную комнату. Вход в нее перенесен из коридора в коридор, благодаря чему дверь из узкого коридора снимается … Замена ванны на душевую кабину позволяет освободить пространство и установить стиральную машину. |
| | В этом варианте за счет переноса дверного проема на кухню расширен санузел, а точнее зона ванны, скошена часть стены, в результате получился полноценный дверной проем в гостиную.Кухонное пространство существенно не оптимизировано. |
| | Здесь снесена перегородка между коридором и гостиной. На этом месте стоит шкаф. Частично нет перегородки между гостиной и кухней. Барная стойка выполняет роль разделителя пространства. Перенеся обеденную зону из кухни в гостиную, кухня стала намного просторнее. Кухонный гарнитур в этом варианте расположен на букву «L» и занимает не только длинную стену, но и стену с окном.Пожалуй, следует отметить нехватку места для хранения вещей и небольшую ванную комнату, которую не перестраивают, а вместо ванны устанавливают душевую кабину и стиральную машину. |
| | Даже такую небольшую квартиру, как однокомнатная хрущевка, при необходимости можно сделать двухкомнатной. Например, на этом плане вы можете увидеть, что кровать и тумбочка размещены в дальнем углу гостиной. Зона спальни отделена частичной перегородкой для доступа естественного света, так как в спальне нет окна.Кухня и обеденная зона объединены единой столешницей. Зонирование проведено с помощью напольного покрытия. Места для хранения вещей есть как в коридоре, так и в гостиной. |
| | В угловых хрущевках, где в комнате два окна, больше вариантов перепланировки, точнее из одной комнаты можно сделать две полноценные светлые комнаты с естественным освещением. На этом плане видно, что перегородка между кухней и гостиной снесена, но возведена новая перегородка, которая теперь разделяет комнату на две части.В результате получилась отличная квартира с раздельными комнатами: гостиной-столовой и спальней. Перепланировка не затрагивает площадь санузла. |
| | Этот вариант перепланировки аналогичен предыдущему, но вход в спальню из гостиной. Но в спальню можно заказать большой шкаф, который решит вопрос с местом для хранения вещей. |
Хрущевка двухкомнатная
Типовая планировка двухкомнатной хрущевки дает больше дизайнерских возможностей, особенно если все стены в квартире не несущие.
В типовой двухкомнатной хрущевке можно значительно расширить санузел через проход, организовать просторную столовую-гостиную. Тем более, что из двухкомнатной квартиры по сути можно сделать «трехрублевую купюру». Распространенных типовых раскладок двушек в хрущевках, получивших в народе любовные названия, три: «книжный», «трамвайный», «мини-улучшенный».
| Вариант перепланировки | Описание перепланировки |
| | Перегородку между комнатой и гостиной просто сносят.Пространство бывшего коридора теперь разделено на три комнаты: прихожую, ванную комнату и кухню. В коридоре — шкаф, в ванной — стиральная машина, на кухне — ниша для холодильника. Дверь в кладовую застроена. Он превратился в гардеробную с входом из спальни. Кухня совмещена с гостиной. |
| | Аналогичный вариант. Отличие в том, что в коридоре нет ниши для гардероба, а в гостиной напротив входной двери есть рабочее место… Вход в шкаф не из спальни, а из гостиной, рядом с рабочим местом. |
| | Здесь перепланировка коснулась в основном кухни и гостиной. Стена между гостиной и кухней снесена и заменена островной кухонной раковиной. Dinner Zone теперь и в гостиной: обеденный стол примыкает к дивану. За раздвижной перегородкой находится двуспальная кровать, встроенная в стену между коридором и гостиной.Из спальной зоны можно попасть в просторную гардеробную, скрытую за раздвижной дверью. Спальня стала детской для двоих детей. |
| | Недостаток перепланировки виден сразу — это слишком длинный и узкий коридор, но, тем не менее, этот вариант имеет право на существование. Ведь он позволяет сделать отдельные комнаты, расширить ванную за счет коридора, а также выделить место для хранения вещей. И спальня, и гостиная-столовая разделены частичными перегородками, которые зонируют пространство и выделяют зону отдыха. |
| | В этом варианте на месте прохода сделана ниша для холодильника и шкафа. Перегородка между кухней и гостиной убрана лишь частично, чтобы сделать новый вход. Гостиная получилась темной, свет идет только благодаря прозрачным вставкам в перегородках. Но новая спальня оказалась очень светлой и с балконом. |
| | Возможен и такой вариант перепланировки.Часть кладовой и спальни становятся общим пространством с гостиной, перегородка между гостиной и прихожей уходит вглубь комнаты, кухонная перегородка демонтируется. Получается очень просторная гостиная-столовая, небольшая спальня и полноценная гардеробная. |
| | Кухня и гостиная здесь не совмещены, как в большинстве предыдущих вариантов, но и ванная расширяется за счет прохода. Перегородка в спальне делит комнату на две спальни — одна с окном, другая без него.Стена выполнена зигзагообразно, чтобы в обеих комнатах оставалось место для глубоких встроенных шкафов-купе. |
| | Этот вариант аналогичен предыдущему. Спальня тоже перестраивается таким образом, что из нее получаются две отдельные комнаты, но санузел не перестраивается, гардеробная и место для встроенного шкафа в коридоре теперь расположены в проходе. Перегородка между гостиной и прихожей перенесена дальше — организовано комфортное рабочее место. |
| | Интересный вариант — диагональная перепланировка, как, например, видно на этом плане. Благодаря такому подходу удалось вписать в ванную комнату угловую ванну, совместить умывальник и стиральную машину под общей столешницей. Кухня не расширяется, но ее дизайн существенно меняется. Сначала сносится перегородка. Стол заменен барной стойкой. Во-вторых, раковину переносят на сторону стены с окном.Перегородка между спальней и гостиной перенесена для размещения встроенной мебели. Изюминкой проекта является гардеробная, по бокам которой можно разместить угловые гардеробы. |
| | Также имеется диагональный коридор. Но спальню значительно расширили за счет гостиной. По сути, получается трехкомнатная квартира, но гостиная небольшая и отделена от кухни невысокой перегородкой. |
| | Аналогичный проект, но прихожая немного больше.Есть ниша для гардероба. Ванная комната увеличена. |
| | Двухкомнатная хрущевка на две стороны. Комнаты смежные. И главная задача — разделить их. Дверь в ванную комнату переносится из узкой прихожей, а за счет уменьшения площади гостиной можно выделить место под кладовую или гардеробную. Спальня разделена сквозным стеллажом, благодаря чему существенно не уменьшается освещенность, а пространство зонируется на спальню и гостиную.Вместо бывшей гостиной теперь детская. |
Трехкомнатная квартира
В трехкомнатной хрущевке задачи перепланировки также сводятся к решению проблемы соседних комнат и их небольшой площади.
Типовая планировка трехкомнатной квартиры предполагает небольшую кухню и гостиную, из которых осуществляется вход в спальню, одна спальня отдельная. Это может быть макет книжный:
Или «трамвайная» компоновка:
| Варианты перепланировки | Описание перепланировки |
| | На этом плане видно, что вход в санузел перенесен и сделан на стыке стен, сняты перегородки кухни и коридора.Кладовая была преобразована в гардеробную и немного расширена за счет прохода. |
| | В этой версии нет перегородки между гостиной и гостиной. Санузел совмещен. Перегородка между гостиной и кухней частично убирается, но остается напротив санузла. Входы в одну из спален и гардеробную расположены полукругом. |
| | Здесь сделана большая и удобная гардеробная, вход в которую из спальни.В гостиной есть специальная закругленная ниша для телевизора, которая стала центральным элементом. В гостиной также есть обеденная зона. |
Фото перепланировки
Видео: перепланировка ванной в хрущевке
Видео: совмещение кухни и гостиной
Дизайн прихожей
Прихожая в хрущевке имеет ряд недостатков:
- миниатюрность;
- длинный и узкий коридор;
- неудобная раскладка в виде буквы «Г».
Чтобы не было недостатка места, прихожую можно расширить ванной или гостиной, хотя бы для того, чтобы установить шкаф. Дело в том, что даже узкий шкаф в такой прихожей будет неуместным, ведь зачастую ситуация усугубляется дверью ванной, открывающейся в прихожую. Если увеличивать комнату не планируется, то придется пойти на различные дизайнерские ухищрения, чтобы не было ощущения загроможденной прихожей.
Дизайнерских приемов, которые позволят максимально разгрузить интерьер:
- Минимализм мебели … Это касается не только дизайна мебели, но и ее количества. В прихожей должно быть только самое необходимое. Это, например, места для обуви и одежды. И следует избегать открытых вешалок, так как даже пара комплектов зимней одежды на них создаст эффект беспорядка. Все-таки нужно постараться выделить место для туалета. Это может быть небольшой угловой шкафчик с зеркальной дверцей. Рядом можно повесить небольшую полочку для мелочей, которые должны быть под рукой. Вообще в хрущевке следует использовать угловые конструкции и зеркала.Просто зеркало напротив двери по фен-шуй вешать не рекомендуется.
- Расширить пространство поможет грамотный подбор цвета интерьера … Известно, что светлые тона визуально делают интерьер просторнее. Это справедливо и для прихожей. Однако если вы последуете этому совету, выбирайте материалы, которые можно стирать. Например, для стен это может быть краска, для полов — плитка или керамическая плитка. Избегайте материалов с пористой фактурой, их легко испачкать в тесноте прихожей, но вернуться к прежнему виду будет сложно.Цветовые акценты будут отвлекать от тесноты прихожей, но не переусердствуйте — их не должно быть много. Что касается потолков, то они обязательно должны быть светлыми, никаких экспериментов с темными оттенками на потолке не будет, иначе появится ощущение очень низкого потолка.
- Освещение … Конечно, дизайн коридора должен предусматривать тщательно продуманное освещение. В коридоре, который априори лишен естественного источника света, это крайне важно. Лучшим вариантом будет натяжной глянцевый потолок с точечными светильниками.Их должно хватить. Например, светильники часто размещают вдоль всего потолка по центральной линии или по периметру стен в два ряда. Могут быть предоставлены дополнительные настенные светильники. Переключатель должен располагаться так, чтобы до него можно было дотянуться от порога. Довольно неудобно, когда он находится в центре коридора. Приходится переходить часть коридора в темноте в грязных туфлях, идя с улицы, просто чтобы включить свет. Кстати, если коридор длинный, то желательно установить сквозной выключатель, с помощью которого можно управлять освещением с разных концов коридора.
- Зонирование … В миниатюрной прихожей зонирование наверняка будет неуместным, чего нельзя сказать о длинном коридоре. Некоторые дизайнеры советуют разделить пространство такого коридора на две, максимум три зоны с помощью арок, также можно использовать цветовые решения.
Фото интерьеров прихожей
Дизайн гостиной
При разработке дизайна гостиной вам придется столкнуться с теми же проблемами, что и в прихожей: низкие потолки, мало света.К тому же гостиная часто бывает проходной, из-за чего значительную ее часть невозможно использовать в полной мере. Часть проблем решается с помощью перепланировки, как уже говорилось выше, часть можно решить, применив грамотные дизайнерские идеи.
- лаконичный дизайн, отсутствие выступающих декоративных элементов;
- минимальное количество мебели,
- нейтральных цветов, возможно использование контрастных цветов для трансформации восприятия пространства, но требуется профессиональный подход.
Скорее всего, вам придется заказывать мебель по своим размерам, так как выбрать что-то из готового будет сложно.
Самым правильным ходом будет замена тяжелых штор на легкие, которые позволят естественному свету максимально проникать в комнату. Вечером следует обеспечить хорошее искусственное освещение. Это могут быть все те же точечные светильники в сочетании с глянцевым светлым натяжным потолком, потолок из гипсокартона с хорошо освещенными по периметру нишами или так называемый парящий потолок, реализованный с применением светодиодной подсветки.
Конечно, в хрущевке можно сделать отдельную спальню, но если вы не хотите жертвовать свободным пространством ради размещения двухспальной кровати, которая будет стоять «мертвым грузом», в качестве решения можно выбрать мебель-трансформер. . Теперь в продаже есть не только кровать, трансформирующаяся в небольшой диван, можно приобрести угловые диваны в комплексе с жилыми комнатами, которые ночью превращаются в полноценные кровати.
Что касается стиля, то при умелом подходе можно оформить гостиную практически в любом из стилевых направлений, хотя бы можно использовать отдельные элементы стиля.Например, гостиные в стиле шебби-шик и хай-тек:
Дизайн спальни в хрущевке
Спальни в планировках типа «книжка» и «трамвай» узкие и длинные. По площади они вроде бы не такие уж и маленькие, но функциональности им это не добавляет. Если в спальне не проводится перепланировка, то следует стремиться приблизить форму спальни к квадрату с помощью мебели. Это легко сделать, если макет «книжный».Можно сделать просторную гардеробную или вместительный шкаф-купе. С «трамваем» сложнее, но выход тоже есть. Как видно выше, с помощью перепланировки можно объединить гостиную и спальню в одной комнате.
Что касается освещения, выбора мебели и цветов, то для спальни применимы все рекомендации, которые были даны для гостиной и прихожей. Отдельно следует сказать, что в дизайне спальни лучше избегать использования холодных насыщенных оттенков в большом количестве, однако яркие контрастные оттенки в большом количестве здесь также неуместны.Спальня должна способствовать покою и умиротворению. Используйте отделочные материалы и текстиль в спальне преимущественно пастельных светлых оттенков, сочетая цвета. Вы даже можете выбрать белый в качестве основного цвета, создав что-то в скандинавском стиле.
Для оформления интерьера предусмотрены специально разработанные цветовые решения, которые можно с успехом использовать, выбрав цвет мебели, отделки и аксессуаров.
Не используйте сложные декоративные элементы с замысловатыми изогнутыми линиями.Если места очень мало, ограничьтесь одной кроватью. Зеркало будет функционально в спальне, особенно если есть место для небольшого туалетного столика и рядом с ним расположена гардеробная. В спальне часто вешают люстру. Лучше отказаться от этого и ограничиться точечным освещением, но если очень хочется, то выбирайте плоские модели.
Кухня в хрущевке
На кухне в хрущевке мало места, буквально не развернешься.Необходимо либо делать перепланировку, либо стараться преобразить пространство, чтобы оно стало функциональным и комфортным.
Главный ход — мебель на заказ. Момент незначительный, но два-три сантиметра тут и там иногда решают «исход боя». Тщательно продуманное размещение кухонного гарнитура, а точнее всех секций, ящиков и бытовой техники, позволяет буквально осуществить ремонт на кухне хрущевки. Подойдет встроенная техника: микроволновая печь, духовка, плита, посудомоечная машина, которая может быть небольшой.Даже холодильники теперь можно приобрести встроенными под столешницу: казалось — шкафчик; а нет, открываешь — холодильник.
Сейчас стало модно переносить кухонную мойку к окну, благодаря чему высокий холодильник можно поставить в углу. С канализацией придется повозиться, но решение того стоит.
Вам не нужно таскать раковину, если вы не видите в этом необходимости, а просто используйте подоконник как столешницу.Некоторые соединяют рабочую зону и барную стойку единой столешницей, что делает интерьер солиднее.
Из текстиля выбирайте короткие легкие шторы на кухню или даже горизонтальные жалюзи, расположенные прямо на створках. пластиковые окна — очень удобно.
Канализационные и газовые трубы в хрущевках не очень удобно расположены на кухне. Газовые трубы при желании можно передать, обратившись в соответствующие инстанции. Или их можно замаскировать мебелью или пластиковым ящиком, или собрать коробку из гипсокартона.
Надеемся, что наши советы помогут вам самостоятельно разработать перепланировку и дизайн вашего любимого и родного Хрущева. И напоследок предлагаем посмотреть еще одну подборку фотографий дизайна хрущевок.
Хрущевка фото дизайн
Кто точно знает, что такое «маленький космос» — это хозяева хрущевских квартир.
Остатки прошлого площадью 27 м² — далеко не подарок. Как можно практично оформить однокомнатную хрущевку: хоть и в тесноте, но хоть не обижаться?
Сделать интерьер однокомнатной хрущевки практичной достаточно сложно, ведь на 17 м² жилой площади (не считая прихожей, кухни и санузла) должны быть предусмотрены зоны для работы, отдыха и сна. Рациональный вариант — объединить зоны, купив модульную мебель или…
Вариант 1: использовать балкон
И даже если такой «ход конем» не прибавляет нам больше 4 квадратных метров площади, а для хрущевки и 4 квадратов — уже кое-что застеклили и утеплили балкон, смело снимайте оконный проем и балконную дверь, вынести весь скопившийся мусор и приступить к ремонту. На балконе, ширина которого редко превышает 1,3 м, можно разместить библиотечную полку, рабочее место или даже два по обе стороны от прохода.
Установите небольшой диванчик под окном, где удобно читать книгу или отдыхать. Если стиль интерьера позволяет, для утреннего кофе поставьте плетеную мебель (стол и стулья). Кресло-качалка выглядит неплохо. На бывшей лоджии легко оборудовать встроенные шкафы-купе полками для хранения предметов домашнего обихода: консервов, инструментов, моющих средств. На бывшем балконе действительно можно оборудовать рабочее место под свое хобби или специфику работы.
Например, так:
Дополнительно зону отдыха можно вынести на тот же балкон:
Полки для книг, растений или любимых предметов декора также можно разместить в оконном проеме: так вы не загораживаете поток света в комнату, а освободившееся от окна пространство выгодно используете.
Вариант 2: модульная мебель — наше все
Итак, мы благополучно разместили одну из зон на балконе.Однако с расстановкой мебели для спальни и гостиной вопрос остается открытым.
Используйте складную мягкую мебель для экономии места. В жизни на раскладном диване нет ничего постыдного или неудобного. В случае меблировки комнаты только с одним спальным местом хорошо иметь ватный матрас или, в крайнем случае, надувной матрас для гостей в кладовой.
Фото — 15 Диван и кровать — два в одном
Модульный диван по индивидуальному проекту трансформируется в кресло, пуфик или журнальный столик… В разобранном виде получается полноценная двуспальная кровать. Устанавливайте шкафы и тумбы из модулей под телевизор и другую бытовую технику.
Фото — 20 Модульный диван — максимальная функциональность
Вариант 3: вниз внахлест
Если вы живете в хрущевке самостоятельно или с партнершей, а дети, внуки и гости — явление «сезонное», смело сносите стены, объединяющие комнаты. Вы не выиграете много места при сносе стены (в среднем ширина стены не превышает 120-250 мм), но зато у вас будет видимость большего пространства в квартире!
Перед сносом стены убедитесь, что она не «несущая», так как вы рискуете разрушить весь многоквартирный дом.Согласуйте перепланировку с соответствующими службами. Попробуйте вариант сделать колонны из стены. Это придаст вашей квартире эксклюзивный вид.
Помимо сноса стены, можно зрительно расширить комнату выбранной цветовой гаммой отделки стен, пола и потолка. Поэкспериментируйте с освещением и зеркалами, зрительно расширяющими границы пространства.
В интерьере однокомнатной квартиры гораздо проще разместить всю необходимую для комфортного проживания мебель.
Если вас беспокоит обособленность спального места, мол, будете спать в комнате без ограничивающих вас перегородок, поставьте между зонами экранчик или фальш-стену, и сладкий сон при любых обстоятельствах вам точно гарантирован . Например, так:
Можно обойтись без перегородок, ширм и штор: достаточно расположить спальную зону и гостиную «спиной» друг к другу: сделав, например, высокое изголовье и угловой диван.
Дизайн однокомнатной хрущевки
ВостребованыКвартиры-студии, которыми оборудованы хрущевки. Перепланировка предполагает объединение кухни, комнаты, холла и балкона, которые условно разделены на зоны. Если приложить руку профессионального дизайнера, получится модный и современный дизайн квартиры.
После снесения стены дополните пространство модной барной стойкой или диваном.Если у вас одна большая комната, разделите ее на зоны с помощью ширм, декоративных штор … Кроме того, используйте отделочный материал (ламинат, плитка, обои, ковролин) отдельно для каждой зоны. Проявите творческий подход, но не зонируйте комнату раздвижными дверями. Важно визуально разделить территорию.
Фото — 42 Книжный шкаф в однокомнатной хрущевке
Из любой хрущевки можно сделать личный рай. Главное — определиться с тем, что вы хотите увидеть, и вы сможете самостоятельно воплотить задуманное в жизнь.Лучше обратиться за помощью к дизайнерам и профессиональным рабочим, которые сделают всю грязную работу. Это сэкономит ваше время, а ремонт не займет несколько лет.
Используйте декоративные элементы: фоторамки, вазы, лампы, зеркала, картины. Но в меру. Не стоит загромождать комнату мелочами.
Фото — 45 Однокомнатная квартира в Нью-Йорке
Неплохие идеи для однокомнатной квартиры, которые можно перенести в интерьер хрущевки:
Фото — 50 Разнообразие идей расстановки мебели в однокомнатной квартире
Несмотря на популярность новостроек практически во всех регионах России, многие, если не большинство из нас, живут в хрущевках в панельных домах… Так в народе называют квартирки хрущевских времен. Они отличаются относительно небольшими кухнями, раздельным санузлом. В этой статье мы поговорим о дизайне однокомнатной хрущевки. Ориентировочная площадь отделочных работ 30 — 32 кв.м. Как сделать из малогабаритной квартиры визуально большую, просторную однокомнатную квартиру, если перепланировка вам недоступна. В статье — дизайн однокомнатной хрущевки.
В маленькой квартире, как в однокомнатной хрущевке, при ремонте хозяева борются за каждый миллиметр, чтобы и визуально пространство выглядело больше, и физически можно было уместить то, что нужно, на минимальной площади.Постараемся обсудить тонкости этой задачи. Ниже мы поговорим о стиле, которого можно было придерживаться при отделке квартиры, о тонкостях отделки и ремонта всех комнат, об отдельных деталях отделочных работ. Например, выбор обоев, существующие их типы. Зонирование пространства, все доступные варианты … Отделка полов. Двери в малогабаритных квартирах. Также раскроем тему влияния цвета в космосе на поведение и настроение людей. Надеюсь, изучив современные тенденции, вы сможете сделать выбор, который принесет максимально качественный результат вашей работы.
Выбор стиля
В хрущевке бывает сложно выбрать один конкретный стиль, что-то может понравиться из одного, а что-то совсем наоборот. Не бойтесь смешивать стили, выбирайте то, что вам по вкусу. В помещении хрущевки выдержать один образ достаточно сложно, и тогда разумнее всего будет использовать материалы разных жанров, руководствуясь собственным выбором форм и отделки.
1. Классика.Сочетание традиций, солидности, дороговизны и качества используемых материалов. Мебель из натурального дерева, обивка дорогой тканью. Тона в этом стиле спокойные, сдержанные. Бежевый, пастельный, темно-коричневый или зеленоватый. Здесь хорошо впишутся картины разного размера и в массивной дорогой раме.
2. Этническая направленность. Квартира в форме культуры, традиций другой страны. Это выбор путешественников, ценителей определенной страны, когда, возвращаясь домой, хочется окунуться в самобытный интерьер чужих традиций.Это может быть китайский, английский, африканский, египетский. Можно, конечно, смешать в одной квартире несколько этносов. Такая 1-комнатная хрущевка будет достаточно экзотической и оригинальной.
3. Современный. Это кантри, арт-деко, минимализм, модернизм, хай-тек, лофт. В этом стиле нет лишнего комфорта. Особенно ярко выражен контраст соседних оттенков. К основному свету нанесено много задней подсветки. Четкая форма мебели.
Дизайн помещения
1.Если в однокомнатной квартире проживает несколько человек, то удобно произвести зонирование комнаты. Выделение минимум двух зон. Для каждого варианта такие зоны уместны по-своему. Зонировать можно в прямом порядке возведения визуально реальной стены или забора. Например, из пеноблоков (тогда стена будет настоящей), ДСП или гипсокартона. Такую перегородку можно звукоизолировать и утеплить, например, стекловатой.
Дизайн однокомнатной хрущевки: гостиная и спальня в одном флаконе
Перегородки из дерева образованы обивочной битумной черепицей, штукатуркой.Чтобы максимально сэкономить жилую площадь, многие стараются сделать перегородку максимально тонкой или замаскировать под нее что-то другое. Например, установите раздвижные двери, они не занимают лишнего места, открываясь в обе стороны за счет раздвижных. Разделить части можно просто шкафом, полками от пола до потолка, стеллажом или мебелью.
Дизайн однокомнатной хрущевки — спальня
2. Отделка может быть на любой вкус, цветовая гамма теперь разнообразна.Конечно, они зрительно увеличивают площадь зеркала, правильно подобранный интерьер однокомнатной хрущевки. Стоит сразу определиться с ассортиментом, так как от этого тогда может зависеть цвет текстиля и мебели. Чем светлее тона, тем больше появляется пространство. Увеличить высоту потолка можно за счет использования вертикальных полос на стенах. И горизонтальное пространство будет казаться больше. Недавняя новинка — жидкие обои, декоративная штукатурка, двухцветные краски. Современное дизайнерское решение — это другой цвет стен.Например, три стены имеют одинаковую отделку, а одна стена сделана в виде кирпича, или наклеены интересные фотообои.
Обои теперь бывают всех видов, расцветок, рисунков. Винил, бумага, объемная, простая. Подробнее об их выборе и цветах мы поговорим ниже. Если пол неровный, теперь есть много способов от заливки до выравнивания деревянными панелями и уровнем. Пол во всей квартире лучше сделать одного уровня, без подоконников и резкого перепада высоты.Еще один момент в дизайне гостиной 1 комнаты в однокомнатной квартире — это картины или фотографии, которые можно повесить на стену в определенном порядке.
Стоит заранее выбрать места, где будут висеть картины, чтобы потом не пришлось заделывать дырочки от гвоздя.
3. Потолок в комнате часто отделывают так называемыми подвесными потолками или, например, обоями под покраску. Также существует технология простого натягивания красивой натуральной ткани между самодельными балками.Балки можно оформить квадратами и покрыть лаком. Получается что-то вроде шведского потолка.
Обратите внимание на домашний текстиль. Вы можете комбинировать на свой вкус, выбирать все в разных цветах: от штор до обивки дивана, от ковра до скатертей. Кто-то предпочитает ткани более грубые, благородные, кто-то более светлые, прозрачные. В небольшом пространстве лучше использовать мебель-трансформер, современные стены, не утяжеляющие шкафы. оставляет простор для фантазии в его оформлении.
4. Для пола используйте паркет или более дешевый вариант ламината. Как правило, спальню-гостиную украшают ковры разных размеров. На темном полу выигрышно будет смотреться светлый ковер небольшого размера. Если цвет светлый, то ковролин, например, в зоне спальни может быть разного цвета.
Дизайн кухни
1. Пол на кухне может быть разным. Самое главное, чтобы он был водонепроницаемым. Например, линолеум, напольная плитка… Ламинат применяют редко, так как при попадании влаги между стыками досок может появиться вздутие и деформация пола, которую потом очень сложно исправить.
2. Конечно, желательно, чтобы вся мебель на кухне имела свойство мыть. Но краска и плитка на стенах в наши дни не удовлетворяют изысканный вкус. Поэтому на данный момент существует большой выбор обоев для кухни, которые можно протирать.
3.Мебель на кухне теперь может быть не только удобной, но и стильной, яркой, оригинальной. На разных сайтах можно подобрать мебель по фото, и в реальности она будет такой. Вас доставят и заберут, это не большая проблема. В небольшом пространстве лучше максимально использовать стены, уменьшить глубину шкафов, использовать более узкую бытовую технику.
4. Кухонный «фартук» можно выложить разнообразной плиткой. Теперь появился новый тренд: стеклянный фото фартук.
5. Если потолок на кухне ровный, то можно приступать к покраске без штукатурки.
Дизайн ванной комнаты
Много времени и сил уделяют ремонту ванной комнаты. В однокомнатной хрущевке можно совмещать санузел. Основная проблема при оформлении ванной в однокомнатной хрущевке и отделке здесь небольшие площади. На такой площади сложно разместить: ванну, унитаз, раковину, стиральную машину.О том, где что будет стоять, лучше подумать с самого начала ремонта, а лучше с точностью до миллиметра. Сидячую ванну следует заменить душевой кабиной. Спрячьте унитаз в стене.
1. Основным материалом отделки стен в ванной комнате является кафель. Теперь она может быть разных размеров, производители придумывают декор из плитки. На данный момент пластиковые панели также используются для отделки ванной комнаты. Выпускаются в различных цветах, с рисунком, а также «под плитку».
2. Подбор мебели. Кто-то уделяет особое внимание функциональной части шкафов и полок, кто-то пытается скрыть неприглядные части труб под этими элементами, кто-то вообще не использует мебель в ванной. Если площадь небольшая, то можно будет разместить максимум шкаф с зеркалом выше и ниже раковины. Плюс полки на стенах.
Двери в небольшой однокомнатной квартире могут занимать много лишнего места.Можно установить раздвижные двери, а можно просто оставить арку, например, из коридора на кухню.
Свет
В специализированных магазинах и на интернет-ресурсах большое количество различных люстр, бра, торшеров. Они могут дополнять друг друга и выполнены в едином стиле, из одних материалов, продаются комплектом. Можно подобрать разнородные источники света, но выгодно подчеркнув дизайн. Вы можете приобрести светодиодные ленты для подсветки периметра потолка.В моде сейчас и шкафы, полки которых подсвечиваются такими же светодиодными лентами. В любом случае свет в квартире должен быть многоуровневым, чтобы можно было оставить его более интимным, выключив основной свет.
Цветовая гамма
Как сделать так, чтобы в вашей квартире было не только приятно и уютно, но и придавало сил и бодрости? Психологи задались этим вопросом. Они изучали влияние на состояние человека, принятие решений таких компонентов дизайна, как цвета, формы, текстуры, изображения.Цвет дизайна может кардинально изменить отношение, навыки и привычки.
Красный придает бодрости, активности, способствует принятию правильного решения. Это как призыв к действию. Если стены оформить красным, то у человека в комнате будет ощущение тепла. Но красный способен уменьшить визуальное пространство. Поскольку он помогает пищеварению, его лучше всего использовать на кухне.
Апельсин поднимает настроение, а также объединяет людей в оранжевой комнате, поэтому оранжевым лучше украсить комнату, в которой вы часто проводите вместе.
Желтый может создать в комнате ощущение солнечного света. Это увеличивает творческие способности. Это образ гармонии и радости. Если у вас окна выходят на север или в вашем климате мало солнца, то за основу своего помещения можно взять желтый цвет.
Зеленый — символ природы, умиротворения, созерцания, безмятежности. Это нежный образ, который требует душевного спокойствия.
Синий успокаивает чувства человека, немного подавляет активность. Как и зеленый, это пассивный цвет.Он вызывает ощущение прохлады и снимает эмоциональное и физическое напряжение.
Синий — форма мечтателей. Как и в случае с синим, в жаркий день в комнате будет прохладно.
Purple выглядит довольно загадочно, оригинально. Но при выборе его в помещении может снизить работоспособность, живучесть, некоторую пассивность.
Розовый — символ романтики, может быстро утомлять, не подходит к классическому образу квартиры.
Коричневый — это стиль надежности, безопасности.Вызывает легкое настроение.
Белый фон так называемой больницы. Может вызывать чувство холода, а также впечатление скромности.
Выбирая дизайн, следует четко понимать функциональность помещения и особенности цвета, который вы хотите использовать в основном отделке. Оттенки можно комбинировать, чтобы добиться оптимального воздействия на всех членов семьи.
Выбор обоев
Выбирая обои, следует понимать, что ближе: однотонные полотна или отделка стен орнаментом.
Однотонные обои имеют следующие преимущества. Они зрительно расширяют пространство. Позволяет сочетать более светлые и более яркие тона. Они отлично подходят для зонирования комнаты. Выгодно выделят мебель, шторы, интерьер комнаты однокомнатной хрущевки.
Дизайн однокомнатной хрущевки — гостиной
К ним проще подобрать шторы. Они не перегружают зрительное восприятие человека, вызывают умиротворение. Такие обои хорошо подходят для стилей минимализм и хай-тек.Комбинируя обои, можно подчеркнуть особенности планировки, акцентировать внимание, изменить пропорции. Правда, на обоях могут сильно выделяться все неровности поверхности. Поэтому в идеале следует подготовить стены к приклеиванию. Обои можно разделить на:
- по материалу изготовления (бумага, флесилин, винил, ткань и т. Д.)
- по структуре полотна (дуплексные и одинарные)
- по фактуре (под натуральные материалы, под ткань или без текстуры)
- по фактуре (гладкая и рельефная)
Обои с рисунком могут отражать все основные цвета интерьера и выгодно дополнять основной стиль комнаты.
Есть несколько видов обоев с рисунком:
- с однотонным рисунком. Это обои, когда узор и основа одного цвета. Рисунок может просто выделяться определенным контуром или просто выделяться, быть более объемным.
- абстрактная иллюстрация. Характерная черта таких обоев — пятна, широкие мазки, точки, разводы. Благодаря такому рисунку на них практически незаметен стык или шов.
- геометрический узор.На таких обоях располагаются различные линии и геометрические формы. Они хорошо вписываются в нейтральный интерьер.
- полосатая. Эти обои хорошо впишутся не только в современный, но и в классический стиль … Как мы уже говорили, такие обои расширяют пространство или приподнимают его.
- классический рисунок. Вот переплетения, образующие единый узор. Может использоваться различное распыление. Такие обои лучше впишутся в классический стиль интерьера.
- с естественным узором. Они могут быть от переплетения листьев, цветов, стеблей.В этом случае стыковка полотен необходима.
Полы
Раскроем подробнее тему современных напольных покрытий … Ведь это тоже очень важный вопрос, которому уделяется много внимания. Начинать отделку белым ключом лучше после отделки стен и пола. Материалы делятся на натуральные и искусственные.
Паркет. Паркет обладает высочайшей износостойкостью, практически не деформируется.Штучный паркет более подвержен внешним воздействиям, например, влаге, чем все остальные виды. Паркет долговечен, но его лучше использовать в непопулярных с точки зрения проходимости помещениях.
Пробковый пол. Экологически чистый материал. Пробка изготавливается в виде плитки, состоящей из спрессованных слоев. Внешний слой — шпон, сверху покрытый лаком. В этом случае очень хорошая звуко- и теплоизоляция. Даже при небольшой деформации такой материал снова выравнивается.Обладает антибактериальными свойствами.
Дизайн однокомнатной хрущевки — коридор
Мармолеум изготовлен из натуральных компонентов. Эти плитки приклеиваются. Достаточно огнестойкий.
Ламинат состоит из нескольких слоев. Основа — МДФ, с применением пластика, сверху — декоративный слой.
Линолеум прочен и долговечен, не боится влаги и легко укладывается.
Ковролин лучше всего использовать в спальнях, гостиных, комнатах, где лучше смотрится уютная мягкая атмосфера.
В заключение хочу сказать, что даже сам процесс ремонта и декорирования может принести истинное удовольствие, ведь это изменение. Ремонт — это все новое, смена декораций, цвета. Конечно, это не подарит вашей квартире-студии новой жизни, но это существенно ее изменит, вы увидите, насколько радостнее вы будете дома. Это новое дыхание вашего дома, и только от вас зависит, доставит ли оно вам истинное удовольствие. Удачи!
1 комната хрущевка макета.Исключает перепланировку однокомнатной хрущевки для семейной пары
Размещение в домах типового проекта Квартиры — обычное явление для всей территории России. И самый распространенный — «хрущевка», славящаяся своей маленькой кухней, низкими потолками и комнатами, больше напоминающими кельи. Трудоустройство — это реальная возможность улучшить свое жилье, сделать его современным и комфортным. Перепланировка 1 комн. Хрущевки 55 фото дизайнерских идей на нашем сайте.
Проблема, возникающая непосредственно перед началом перепланировки, — это небольшая площадь таких квартир.Все-таки, как ни крути, потолки не поднимаешь, да и комнату делать уже не можешь. Но выход как всегда есть! Он заключается в сносе перегородок и освобождении единого большого пространства.
Дизайн однокомнатной квартиры Перепланировка хрущевки, в большинстве случаев пространство кухни и самой большой комнаты, однако объединение не должно быть полным. Арка, барная стойка подойдут для лучшего веселья. Но, если полной ассоциации избежать не удалось, пространство можно разделить по внешнему покрытию, цвету стен, расстановке мебели.Перепланировка однокомнатной хрущевки 30 кв. М фото ниже:
Стену маленькой комнаты можно перенести так, чтобы поместилась только двуспальная кровать. Это будет только место для проживания, а основное времяпрепровождение будет проводиться в большом просторном помещении, еще более увеличенном за счет переноса стены меньшего помещения. Этот вариант идеально подходит для размещения одного-двух человек, не имеющих детей.
Перепланировка 1 комнаты хрущевки — внешний вид ребенка определяет обустройство отдельной комнаты и для него.
- Этого можно добиться путем переоборудования «Кабинета» в детскую спальню.
- В связи с «отчуждением» небольшого пространства, спальни (если площадь позволяет) или большого помещения, увеличивают за счет кухни, коридора и одной или нескольких комнат.
- Туалет рационально совместить с санузлом, установив вместо громоздкого санузла душевую кабину.
- В этом случае в ванной можно разместить еще одну стиральную машину и мебель для хоз.
- Для переноса сантехнических приборов может потребоваться частичный или полный перенос водопроводных и канализационных труб.
Ссылка на однокомнатную квартиру Хрущев Фото:
Ни в коем случае нельзя допускать несущих стен, определение по типу которых не всегда возможно и профессионально, системы вентиляции, газовые трубы. В этом случае вам на помощь придет специальная организация, имеющая лицензию на такое обследование.Стихийная перепланировка нередко заканчивается плачевно и грозит обрушением конструкций жилых помещений и гибелью людей.
Капитальный ремонт однокомнатной квартиры Хрущевки
Планируете ли вы капитальный ремонт квартиры? Тогда несите не только средствами, но и терпением! Перепланировка 1 спальни хрущевка Фото, конечно, если вы выбрали капитальный ремонт квартиры, то, вероятно, не только кардинальное изменение всего стиля жилого помещения, но и внедрение креативных и нестандартных решений во всем дизайн-архитектура.Приступая к перепланировке квартиры, приглашенный дизайнер будет обязан предложить оригинальный проект, в котором будут учтены все новые требования заказчика (ваши).
При проведении капитального ремонта в жилом помещении потребуется выполнить большой объем работ и полностью заменить существующие в квартире коммуникации (внутренние). Это не только система электроснабжения, водоснабжения и канализации, но и отопление, а также кондиционирование.Выполнить качественный ремонт в своей квартире помогут строительные тендеры, которые рассчитаны не только на предоставление высококлассных специалистов, но и приемлемые для вас расценки на уровень ремонтных или строительных работ. Перепланировка однокомнатной хрущевки 30 кв. М Фото:
Принципиально актуален при ремонте старых квартир, где предполагается замена окон и дверей (входных и межкомнатных дверей). Безусловно, любой капитальный ремонт проводится на высоком уровне, где используются новейшие технологии и закупаются самые подходящие стройматериалы.Не обойтись без оштукатуривания стен, стяжек пола, отделки стен, проектирования архитектурных сложных решений, где современные формы в интерьере должны быть лаконичными и продуманными.
Дизайн однокомнатной квартиры Переселение хрущевок — Многие заказчики любят стилизовать стены, а значит, не только оригинальные арки и ниши, но и колонны необычной формы или даже оригинальное оформление окон. Особенно востребованы стилистические решения в креативном дизайне квартир.
Проведение капитального ремонта
Чтобы провести капитальный ремонт своей квартиры, нужно запастись большим терпением и предварительно скрупулезно просчитать все затраты. Взвешенный подход ко всему, в том числе к качеству работы, а также профессиональный подбор материалов, позволит уйти от ненужных трат не только денежных средств, но и соблюдать договорные обязательства, а также что важно выполнить помещения в кратчайшие сроки. заранее согласованная дата.
Поэтому желательно не только грамотно составить смету и определиться с фиксированной суммой, которая пойдет на закупку всех стройматериалов и оплату труда, но и заключить договор с подрядчиком. , ограничив его в размахе на ремонтные работы.
Очень важно контролировать процесс закупки материалов и проводить ежедневный контроль с соблюдением сроков, тем самым показывая слабые места.Перепланировка 1 комнатной квартиры Хрущев Фото:
Планировка однокомнатной хрущевки в совокупности с остальными недостатками (небольшая площадь комнат, низкие потолки) делают эту квартиру неприглядной. Однако собственниками таких квартир является большое количество людей.Кто-то прожил в этой квартире всю жизнь, кто-то ей достался по наследству и т. Д. В настоящее время мир дизайна и размещения фотографий в Интернете побуждает людей делать свое жилье более красивым и комфортным. В связи с этим владельцы однокомнатных квартир все больше интересуются перепланировкой собственной квартиры. Мы решили помочь вам в этом вопросе и предлагаем 3 примера перепланировки 1-комнатной хрущевки.
Вариант 1
Для кого: Для семьи или молодой пары
Квадрат : Кухня — 6.4 кв.м, санузел — 2,7 кв.м, постпроект — 0,6 кв.м, спальня-гостиная — 16,6 кв.м, коридор — 3,3 кв.м.
Характеристики: Дизайн мебели в гостиной-спальне довольно распространен. Зонирование в этом помещении осуществляется с помощью. Вход на кухню осуществляется через основное помещение, а на месте предыдущего прохода появляется небольшая кладовая. На кухне за дверью небольшой стеллаж для хранения вещей. Вход в баню перенесен, в ней вместо привычной ванны установлена душевая кабина.Места хранения ключей: шкаф для верхней одежды в коридоре и два вместительных шкафа в гостиной. Дополнительные места можно организовать на застекленном балконе.
Вариант 2.
Для кого: Для семьи или молодой пары
Площадь : Спальня кухня — 19,9 кв.м, ванная — 2,7 кв.м, Гардеробная — 4,3 кв.м, Коридор — 1,6 кв.м, пост-1,1 кв.м.
Характеристики: Снос стены между кухней и большой комнатой позволил правильно организовать пространство.В результате мы получили уютную кухню-гостиную и небольшую спальню, разделенную стеллажной перегородкой, на которой установлен телевизор. В глубине спальни вход. В углу коридора занимает место размещения с местами для хранения вещей.
Примеры дизайна предлагаемой перепланировки:
Вариант 3.
Для кого: Для семьи с ребенком
Площадь : Кухня-гостиная-спальня — 14,9 кв.м., ванная — 2,7 кв.м, детская — 5,1 кв.м, гардеробная — 2,8 кв.м, коридор — 3,1 кв.м, кладовая — 0,8 кв.м.
Характеристики: Сделать в однокомнатной хрущевке почти трехкомнатную квартиру вполне реально. Для этого грамотно избавьтесь от каждого квадратного метра. Две кладовки в коридоре: Гардероб и кладовка избавят остальную площадь от массивной мебели. Перенесенная дверь ванны позволит использовать часть коридора и большую комнату для гостиной и спальни, которая отделена стеллажом.Широкий проход на кухню нужен не только для, но и для достаточной вентиляции большого помещения. Оставшаяся площадь отдана под детскую, в которой располагаются стол, кровать и шкаф. При желании можно застеклить и утеплить балкон, он позволит туда стол или шкаф. Таким образом, свободное пространство в комнате увеличится.
Примеры дизайна предлагаемой перепланировки:
Дизайн и перепланировка типовой хрущевки на однушку задача не простая, но безупречная.Вы можете, конечно, самостоятельно изучить различные дизайнерские решения и схемы, например, от 30 квадратных метров. метров создать свой неповторимый шедевр, но для этого нужно обладать некоторым сходством художественного стиля, пространственного мышления и т. д., прочее. Придется переложить много сайтов, посвященных ремонту и дизайну и голова, гарантированно, обойдется и начнет болеть.
Лучший способ Найдите специалиста, который бы воплотил в себе все возможности и таланты — дизайнера и строителя, но, как правило, не оказывается в кругу друзей.Или обратитесь в конструкторское бюро, которое будет делать проект, посоветуют бригаду строителей, а оно все равно проведет авторский надзор за объектом — это будет стоить денег, причем немалых.
Но в любом случае, прежде чем искать, все-таки необходимо получить представление о будущей реконструкции жилища, проектных вариантах, необходимых документах и т. Д.
Стоит отметить, как обратить внимание, что «однушки» постройки 50-60-х годов, как правило, имеют правильную геометрию, что позволит при реконструкции наиболее рационально использовать каждую площадь.Сантиметровый квадратик.
Как отмечалось в предыдущих дизайнерских статьях — наиболее распространенные варианты изменения пространства 1-комнатной квартиры:
- если санузел раздельный — он объединен
- если санузел совмещен — расширить от коридора
- расширение коридора минуя кухню
- холл совмещен с кухней (исключение — если газ плита)
- Зонирование (тяжелое) Зоны отдыха (спальни)
Это, конечно, далеко не все варианты, но этого вполне достаточно для воплощения самых смелых фантазий.1 комнатная квартира идеальна для молодых людей, которых нет (пока), пожилых пар и одиноких людей. Но, к сожалению, часто бывает, что 30 квадратов должны сосуществовать три, их четыре и даже встроить, здесь просто необходимо принять кардинальное решение по разделению пространства так, чтобы каждый чувствовал в нем свой угол, куда мог бы уйти. .
Молодая семья из трех человек может разместить 30-40 квадратов, превратив 1 комнату в две, одна из комнат естественно будет детской, а вторая — гостиной и спальней одновременно для родителей.
Вам могут предложить следующие варианты перепланировки:
Кухня, холл и коридор объединены в единое пространство — квартира визуально становится просторнее, естественно, увеличивается жилая площадь, если в отделке стен использованы зеркальные поверхности. Можно срезать кухонную зону барной стойкой, расположив ее под некоторым углом к несущим стенам.
Гостиная также совмещена. Если есть раздельный санузел — его объединяют и увеличивают пространство прихожей, что позволяет разместить шкаф-купе.Также при зонировании пространства в гостиной книжным шкафом получается полноценное место отдыха.
Жилое пространство также можно сильно увеличить за счет утепления балкона и превращения его в офис, но это требует согласования со специалистами, так как могут быть затронуты несущие стены и изменена схема обогрева жилого помещения.
Также, как вариант, можно увеличить площадь ванной, пристроив часть прихожей — стиральная машина уходит в ванную.А за счет слияния пространств кухни, прихожей и холла получается жилая площадь, достойная по объему и своей функциональности. Также за счет увеличения периметра стен вся техника умещается на кухне. Барная стойка, расположенная в простоте между окнами, превосходно зонировала пространство гостиной и кухни. В самом зале можно, помимо дивана, разместить и стол, и создать рабочее место. А также достаточно места для гардеробы, где будут храниться вещи и предметы.
Следует обратить ваше внимание на некоторые нюансы. Задумав перепланировку со сносом стен, нужно четко представлять, какие стены несущие, а какие нет. Если вы решили повлиять на несущую стену, например, вырезать в ней проем, то этот проем следует укрепить специальной консервацией, причем сделать это должны специалисты и с разрешения соответствующих организаций. Любопытство здесь недопустимо и просто опасно!
При совмещении ванной и туалета необходимо помнить о гидроизоляции всей площади участка.Также запрещено увеличение зон туалета, ванной и кухни с площади жилых помещений — помните об этом. Исключение может быть в случае, если у вас есть первый этаж, а под вами подвал или магазин.
Нельзя переносить кухню на место гостиной, а также туалет с ванной — коммуникации (вытяжка, водопровод и канализация) не берут на себя такую смелую и необдуманную инициативу. В случае с газовой плитой — категорически запрещено объединять однокомнатную комнату с кухней, в любом случае необходима перегородка, либо менять газ на электричество.Все эти моменты можно узнать в сети или обратившись напрямую в БТИ, FAQ и т.д.
Вот пример работы дизайнеров. Что можно создать на 28 кв. метров, найденных в сети. Судя по потолкам не хрущевки, а постройки старых 50-х годов в центре Москвы.
Пространство можно зонировать по-разному, используя стены, пол, потолок.
Планировка 1-комнатной квартиры хрущевки должна была кардинально изменить квартиру — превратить ее в уютную студию.Проект проекта: В продуманном интерьере хрущевка позволяет зрительно увеличить пространство.
На фото:
Проектно-конструкторское бюро М2Проект — участник конкурса «Лучший дизайн квартиры» на pinwin.ru
Ребятам из КБ «М2Проект» подарили типичную однокомнатную хрущевку в Московской кирпичной пятиэтажке постройки 1960 года. Интерьер однокомнатной квартиры хрущевки требовал грамотной модернизации. Планировка однокомнатной квартиры в хрущевке — не широкое поле для экспериментов, но здесь были знающие и творческие люди, где развернуться.Весь интерьер 1 комнатной квартиры хрущевки расположен на открытом пространстве площадью 30 кв.м. Как видно на фото интерьера однокомнатной квартиры хрущевки, есть все необходимое для жизни: кухня, столовая, рабочее место, гостиная / спальное место и санузел. Планировка 1 — комнатной скомканной позволила создать ощущение большого открытого пространства. Чистые серо-белые оттенки стен уравновешивают насыщенный колорит постеров, а стул и стол ярких цветов на балконе создают радостное настроение.
Комментарий в ФБ Комментарий в ВК
Дизайн квартиры-хрущевки. Способы преобразования космоса
Купить элитную недвижимость может представить себе не каждый из нас. Поэтому большая часть населения проживает в типовых квартирах советской постройки — хрущевках. Главный их недостаток — небольшая площадь. Тем не менее, грамотно продуманный дизайн квартиры-хрущевки способен до неузнаваемости преобразить жилое пространство, сделав его современным и красивым. Необходимо соблюдать лишь некоторые правила и рекомендации по оформлению интерьера.
ВаннаяЭкономия места — главное правило внутренней отделки малогабаритных квартир. Поэтому ванную и туалет следует совмещать. Благодаря этому останется свободное место для стиральной машины. Ванну лучше всего заменить на компактную душевую кабину. Чтобы визуально увеличить пространство, потолок можно сделать глянцевым, оборудовав его воздуховодом.
Дизайн однокомнатной квартиры-хрущевки. Фото
Переоборудование однокомнатной квартиры может производиться двумя способами.Первый — это снос стен. В результате плотная однушка превратится в стильную современную квартиру-студию.
Второй способ — сохранить стандартную планировку и разделение основного помещения перегородками. Что делать с кухней? Обустраивайте его максимально рационально и компактно. Если все же небольшая площадь кухни не удовлетворяет ваши пожелания и запросы, сделайте в стене небольшую арку. Он объединит обеденную зону и основную комнату. В этом есть свои плюсы и минусы.Новый дизайн квартиры-хрущевки, совмещающий две зоны, позволит разместить достаточно большой кухонный гарнитур. Однако теперь все шумы и запахи приготовленной еды будут слышны в гостиной. Спальное место можно отделить от общей комнаты с помощью легких перегородок или раздвижных конструкций.Гостиная
Комната, в которой хозяева проводят большую часть времени, должна быть максимально комфортной, красивой и комфортной. Планируя дизайн квартиры-хрущевки, следует отдавать предпочтение светлым тонам в интерьере (пол и стены).Лучше всего использовать подвесной двухуровневый потолок. Он визуально увеличивает высоту комнаты. Окно нужно максимально открывать. Для этого используйте прозрачный тюль и легкие шторы. Мебель должна быть функциональной, а не громоздкой и вычурной. Правильно подобранное освещение сделает гостиную не только уютной, но и просторной.
Дизайн двухкомнатной квартиры-хрущевки. СпальняГарнитур лучше всего выбирать светлых оттенков. Очень удачным приобретением может стать встроенная кровать.Обратите внимание на комод. Он занимает немного места и оказывается довольно функциональным предметом мебели. На нем можно разместить телевизор, лампу, часы и прочую мелочь. Настенный кронштейн и небольшие прикроватные тумбочки, зеркала отлично впишутся в интерьер. Дизайн хрущевок не терпит громоздкости и тяжести. Поэтому плотные темные шторы с ламбрекенами сюда не подходят. Лучше выбирать легкие римские или японские шторы. А сделать комнату еще просторнее поможет точечное зональное освещение.
Как спланировать однокомнатную квартиру
Не у всех наших соотечественников есть просторные и уютные квартиры. Многие довольствуются скромной «однушкой». Конечно, однокомнатные квартиры улучшенной планировки намного комфортнее, чем в «хрущевке». Но они все равно рассчитаны на одного человека или небольшую семью из двух человек.
Тем не менее, этот вид недвижимости по-прежнему остается наиболее востребованным на рынке. Это понятно. Часто такая квартира становится первым собственным жильем молодых людей, и поэтому естественно, что они рады возможности жить самостоятельно.
Есть вторая категория покупателей, отдающих предпочтение этому типу жилья — пожилые люди. Им намного проще ухаживать за маленькой квартирой, чем за просторными особняками.
Однако перед всеми владельцами малогабаритных квартир рано или поздно встает вопрос, как сделать планировку однокомнатной квартиры более комфортной для проживания. Сегодня мы рассмотрим возможные варианты такой реконструкции.
Планировка малогабаритной квартиры
«Счастливые» владельцы однокомнатной квартиры площадью 30 квадратных метров и менее не понаслышке знают, как сложно расположить все необходимое на этом участке.В этом случае единственный выход — правильное зонирование, создание эргономичного пространства. Учитывая, что комната всего одна, не самая большая, это непростая задача даже для профессионального дизайнера. Ведь в таком маленьком пространстве необходимо совместить рабочую зону, место для встреч и отдыха с друзьями, спальню, а возможно и детскую.
Планировку однокомнатной квартиры площадью 30 м 2 следует начинать с дизайна. В наше время специалисты предложат вам множество вариантов решения этого вопроса различными способами.Главное, не перегружать интерьер такой маленькой комнаты лишними деталями. Основное внимание следует уделять функциональности.
Выберите дизайн
Особое внимание стоит уделить стенам. Самый распространенный вариант в этой ситуации — объединение комнаты и кухни, когда убрана перегородка между ванной и туалетом. В результате пространство становится более свободным. Использование отделочных материалов светлых тонов позволит избежать мрачного впечатления.
Выбор интерьера
Планировка однокомнатной квартиры должна осуществляться с учетом правильного стиля.В этом случае больше всего подойдет стиль хай-тек, минимализм. В их основе лежит использование небольшого количества мебели, а все предметы интерьера должны быть максимально функциональными.
Используйте в интерьере стекло и зеркала — они зрительно расширят пространство.
Когда в семье есть ребенок
В этом случае планировка однокомнатной квартиры несколько сложнее. С ребенком родители должны думать не только и не столько о собственном удобстве, сколько о комфортном проживании в этой маленькой комнате малыша.Как сделать планировку однокомнатной квартиры одинаково удобной для ребенка и его родителей? Конечно, необходимо четко зонировать пространство, чтобы каждому в своем уголке было комфортно.
Устанавливаем мебель
В родительской зоне рекомендуем использовать кровать-трансформер, которую утром можно приподнять и освободить свободное место. На пол нужно постелить мягкий толстый ковер, на котором при желании можно присесть. От детской зоны «спальню» родителей можно отделить легкой полочкой с открытыми полками.
В детской зоне при наличии хорошего металлопластикового окна рядом с ним может быть размещена детская кроватка. Сам проем лучше всего оформить рулонными или римскими шторами, которые не занимают много места. Каждая зона должна освещаться отдельными светильниками.
На кухне необходимо установить надежные двери, чтобы когда ребенок засыпал, родители могли спокойно разговаривать, не нарушая сон малыша.
Планировочные решения однокомнатной квартиры: 40 кв.м. — это много или мало?
Казалось бы, это уже вполне приемлемый район для проживания. Однако многим людям, особенно молодежи, хочется жить в стильном интерьере. Оптимальным вариантом решения этого вопроса может стать его перестройка в студию. Продумывает планировку однокомнатной квартиры площадью 40 кв. м., следует тщательно продумать все необходимые зоны. Постарайтесь оставить как можно больше свободного места в центре комнаты.
Мебель в такой квартире должна быть функциональной.Например, письменный стол после работы можно превратить в узкий шкафчик у стены. Ту же процедуру можно проделать и с кроватью.
Освещение
Очень актуально для однокомнатной квартиры. Самым ярким он должен быть в зоне готовки. А вот потолок на кухне лучше оставить в полутени. Для зоны столовой-гостиной целесообразнее осветить потолок. Для «спальни» яркое освещение не только не обязательно, но и нежелательно — двух ночников или бра будет вполне достаточно.На прикроватные тумбочки можно поставить две небольшие настольные лампы.
Цветовая роль
Она должна гармонично сочетаться с освещением. Учеными давно доказано влияние цвета на психику человека. Известно, что использование холодных тонов в столовой приводит к снижению аппетита. Поэтому такие тона актуальны для тех, кто мечтает похудеть.
Мебель для однокомнатной квартиры
Ее выбор зависит от количества проживающих в маленькой квартире.В любом случае он должен быть многофункциональным. Если в семье двое детей, то лучше покупать двухъярусные кровати. Очень удобны выдвижные модели, которые выдвигаются одна из-под другой, напоминая лестницу. Можно выбрать раскладушки, которые по утрам прячутся в стене.
Используйте встроенные шкафы. Желательно, чтобы они были высокими до потолка, чтобы максимально использовать свободное пространство. Диваны-трансформеры, мягкая модульная мебель в последнее время очень популярны. Соответственно переставив такие гарнитуры, можно получить кровати, кресла или большой диван.
К счастью, громоздкие телевизоры были заменены плазменными панелями, которые крепятся на стене и не занимают места.
Используйте декоративные ширмы, которые на ночь могут отделить спальню родителей от детской.
Вам очень повезло, если в вашей квартире есть ниша. В зависимости от размера это может быть идеальное место для детской или родительской спальни. Кроме того, его можно использовать как гардеробную.
Квартира в хрущевке
Главный недостаток такой однокомнатной квартиры — небольшие размеры комнаты, санузла, кухни.К тому же в нем очень низкие потолки, часто нет балкона. При строительстве этих домов главным девизом было: «Главное — крыша над головой!» Об удобстве не было и речи. Однако сегодня планировку однокомнатной квартиры в хрущевке можно сделать более удобной. Для этого рассмотрим новую конструкцию.
Создать ощущение простора можно, немного «приподняв» потолок, высота которого в таких квартирах составляет чуть более 2,5 метров. Для этого необходимо отделать его поверхность материалами ярких цветов.
На стенах лучше использовать обои с вертикальными полосами — они создадут эффект большей высоты. Шторы на окне тоже должны работать над этим. Не загромождайте подоконник, это касается даже комнатных растений — их лучше поставить на специальную стойку.
Редевелопмент
«Хрущевки» всегда имели узкие темные коридоры и большое количество дверей. Это создает эффект тесноты. Казалось бы, достаточно снять дверцы с петель, и проблема будет решена.Однако это не так. Требуется кардинальная перепланировка помещения. Но перед его началом необходимо сделать проект и утвердить его в БТИ.
Самый простой вариант — убрать «лишние» двери и снести внутренние стены. Это создаст единое пространство, которое вы сможете спланировать по своему вкусу.
Многие считают, что совмещать кухню, прихожую и комнату — не лучший вариант. По их мнению, кухню все же следует отделить от комнаты хотя бы легкой раздвижной перегородкой.В этом случае большой раздвижной стол, стоящий на линии, разделяющей кухню и комнату, может стать объединяющим элементом. Во время приготовления перегородку можно закрыть.
Дизайн помещения следует продумать так, чтобы в нем размещалось все необходимое для хозяев, но при этом сохранялся хотя бы визуальный эффект пространства.
Планировка однокомнатной квартиры 30 кв. М. Дизайн интерьера однокомнатной квартиры
А сделать увеличение площади ванной — это очень важно, и особенно это касается семей с детьми, проживающих в однокомнатных квартирах.
Однокомнатная квартира способна стать идеальным домом как для семейных пар с детьми, так и для одиноких людей. Самое главное — как создать уютную атмосферу в пространстве, где есть дети. Далее будут рассмотрены различные варианты планировки в однокомнатной квартире, а также все возникающие нюансы.
Что такое дом серии II-18-01
Дома серии II-18-01 Блокированные Дома Башни От одного подъезда, при полном отсутствии несущих стен.Главное достоинство — балкон, он довольно просторный, но кухня недостаточных размеров, что не порадует хозяев.
Семейный Param
Имеется разделение жилой комнаты на зоны, в том числе , гостиная, , в которой есть диван и телевизор с небольшой стойкой в населении. Вдоль одной стены — шкаф, в котором хранится одежда.
По входу Б. санузел Есть еще одна стенка, позволяющая оборудовать шкаф-купе небольших размеров в коридоре.Для этого здесь установлена стиральная машина и есть полки для хранения необходимых вещей.
На кухне Имеется размещение гарнитура углового типа с небольшим обеденным столом круглой формы.
По словам эксперта, планировка квартиры претерпела минимум изменений. Согласование изменений в части перепланировки и технического заключения производится в любых проектных организациях с допуском СРО.
Семьи с детьми
Для семей, в которых есть дети, идеальным вариантом становится наличие, под которым задействована определенная часть коридора.Перенос расположения унитаза в ванной позволяет установить кровать лежачего типа.
Специально разработанные Встраиваемые шкафы Увеличенная вместимость позволяют хранить вещи в коридоре и в детской зоне. Для родителей на диване оборудовано спальное место, а рядом удобная и функциональная рабочая зона.
Специалисты считают, что в процессе согласования планировки идет замена перегородки раздвижного типа на текстильную.Для всего остального потребуется проект с техническим заключением организаций, ответственных за проекты с допуском СРО.
Апартаменты-студио для 1 человека или семейной пары
С помощью коридора произошло увеличение санузла, который теперь является санузлом, и места для стиральной машины и хранения вещей одновременно. Прихожая и гостиная оборудованы двумя небольшими гардеробными.
В непосредственной близости от окна есть место, где будет располагаться рабочий стол .После того, как произойдет объединение комнат, следует установить удобный гарнитур раздвижного типа для разделения двух комнат на кухне.
По мнению специалистов, в процессе согласования данного варианта планировки должно быть сделано четкое обозначение границы, отделяющей коридор от жилого помещения. Выход прямо Б. из жилого помещения Из санузла запрещен, если в квартире нет второго санузла. Остальное предельно просто и требует только проекта и технического заключения.
Многие молодые семьи начинают совместную жизнь в маленькой квартире. Чаще всего на покупку большой квартиры на первом этапе денег не хватает, но, тем не менее, жить в красивой квартире хочется изначально.
Даже небольшую однокомнатную квартиру можно обставить лучше, чем большую.
В однокомнатной квартире очень важно рационально разместить всю мебель, а также избавиться от всего, чем вы не пользовались в течение последнего года.
Может и жалко их выкидывать, но если не нашли приложений за год, оставив в корпусе типа «а вдруг пригодится», в малогабаритной квартире лучше не хранить, иначе он превратится в мутовку.
Избавляясь от ненужных вещей, вы должны понимать, что только выиграет: как минимум, освободив место для более необходимого и полезного в повседневной жизни.
Несмотря на небольшие габариты, однокомнатную хрущевку можно переделать так, чтобы она визуально выглядела просторной, в ней будет много света и уюта. Но для этого серьезно отнеслись к ее переустройству, учли каждую секцию комнаты, тщательно продумали и подобрали новую мебель .
В основном поможет только ремонт однокомнатной квартиры в хрущевке.При этом потратиться придется, ведь полноценный и безупречный интерьер со старой мебелью не удастся.
Основным фактором готовности квартиры к жизни в ней является возможность очень быстро найти нужную вещь и не акцентировать внимание на дизайне необычного декора. Учитывая это, подбор мебели осуществляется под заявки жителей, планирующих там жить .
Совет! Для создания уютной квартиры дизайном интерьера лучше заняться самостоятельно, ведь только вы знаете, что хотите видеть в комнате, чтобы почувствовать настоящий комфорт.
Как поставить мебель
При кладке мебели в хрущевке следует учитывать, что необходимо засыпать вещами такие места:
- над диванами на стенах, полках и стеллажах будет хорошо смотреться;
- в углах тоже не помешало бы установить какую-то мебель, шкафы;
- в коридорах было бы неплохо повесить полки: это тоже сэкономит место и увеличит свободное пространство (хотя бы для того, чтобы разместить предметы большего размера).
Если вы планируете покупать новую мебель, стоит учесть, что без ремонта новый гарнитур или другая мебель не будет смотреться, а лишь подчеркнет все недостатки интерьера однокомнатной квартиры. Стены и полы будут выглядеть еще более потрепанными и потерявшими свежесть. Восторг мгновенно улетучится, как только вы все расставите все по своим местам.
Совет! При обновлении мебели стоит произвести хотя бы минимальный косметический ремонт, который позволит гармонично выглядеть современной мебелью в обновленном интерьере.
Зонирование однокомнатной хрущевки
Как правило, в хрущевках не только люди в возрасте, но и молодые семьи, поэтому для всех лучший выход — это действовать кардинально и делать перепланировку, ведь несмотря на небольшие габариты, всем хочется жить в красивой квартире.
При этом перегородки будут отсутствовать, что даст возможность выгодно увеличить жилую площадь и заселиться в современной однокомнатной квартире. Зонирование однокомнатной хрущевки позволяет улучшить жилищные условия любой семьи.
Двери в такой квартире будет всего две — в подъезде и в санузел. Мебель будет покупаться в соответствии с зонами площади. Это даст дополнительную возможность получить и кабинет, и гостиную, и спальную зону .
Вы умеете позиционировать? Как и на какую стену повесить зеркало, а чего нельзя — на все есть ответы в восточной мудрости.
О нормах высоты установки над кроватью читайте в плюс советы по выбору бра в спальню.
Для разделения пространства квартиры можно использовать стены или всевозможные по ширине перегородки.
Кроме того, используя дизайнерские секреты, можно визуально разделить пространство по зонам. Для этого можно положить разные материалы: керамическую плитку, ламинат или ковролин на кухне и в комнате.
Потолок также можно оборудовать различной подсветкой. Такая идея для однокомнатной квартиры-хрущевки наиболее оптимальна, так как подходит большинству и решает проблему небольшого и слабоосвещенного пространства.
Совет! Разделить пространство на зоны можно разными способами, например, по-разному разместить дизайн кухни и комнаты в однокомнатной хрущевке.
Элементы интерьера
Чтобы интерьер однокомнатной хрущевки был уютным, стоит обратить внимание на визуальное увеличение и использование любого помещения в помещении с цветом. Для этого интерьер обычно выполняется в светлых оттенках.
Стены должны быть на оттенки темнее потолка.Идеальным будет глянцевый потолок и вообще использование глянцевых поверхностей. Отражения помогают зрительно избавить человека от границ каждой вещи, создавая в голове единую цельную картинку.
Подвесные потолки лучше не использовать, так как они визуально сделают комнату меньше.
Совет! Обои с мелким рисунком лучше наклеивать на стены, также отлично будут смотреться однофотонные светлые обои.
В интерьер отлично впишется мебели, состоящей из модулей .Модульные мебельные системы обладают особым преимуществом: в одном стиле вы можете выбрать все предметы, которые вам нужны, и удовлетворить основные потребности домочадцев.
При наличии возможности можно заказать шкафы-купе. Их размещают по всей длине и высоте стен, при этом в них могут быть предусмотрены открытые полки и антресоли. Комплектация будет полностью зависеть от ваших пожеланий.
При укладке шкафа-купе лучше определиться, где и какой предмет планируется разместить все в своих нишах и на полках. При выборе цветовой гаммы. Лучше отдать предпочтение светлым оттенкам .
Светлые оттенки позволяют визуально осветлить комнату, наполнить ее светом и сделать просторнее.
Безусловно, стремление получить от небольшой набранной площади мебели как можно больше места для жилого пространства с минимальным количеством предметов, необходимых для жизни, привело к созданию мебели, объединяющей сразу несколько функций. Эта мебель может складываться и раскладываться, и называется она трансформируемая .
К такой мебели относятся: диван, трансформирующийся в спальное место; стулья, в которых есть место для хранения вещей; Кровать, скрывавшаяся днем от глаз, ну и получила широко распространенные шкафы, имеющие множество приспособлений и полок, на которых просто поместится невероятное количество вещей и мелочей.
Совет! Чтобы сделать много мебели в маленькой комнате, используйте многофункциональные предметы.
Освещение квартиры
Освещение также создает уют и комфорт и добавляет изюминку дизайну однокомнатной хрущевки, поэтому ей стоит уделить пристальное внимание.Отличные современные точечные светильники — настенные и подвесные потолки вместе с небольшой люстрой. Было бы неплохо использовать не только глянцевые поверхности, но и зеркала, так как они расширяют пространство.
Дизайн однокомнатной хрущевки, в которой два окна, площадью 30 кв. м считается типовым, так как естественное освещение положительно сказывается на восприятии человеком пространства.
Если у вас узкие окна, попробуйте их расширить.Даже полметра сыграет большую роль, так как сама квартира маленькая, и много света в них, как правило, не бывает.
Важно! Большие окна Дизайн 1 комнатной квартиры-хрущевки выглядит привлекательно, но предметы в комнате должны быть пропорциональны их размеру.
Цветовая гамма
Самый популярный цвет, используемый для создания интерьера — белый. Его можно использовать как вместо фона, так и для визуального расширения пространства.Используя белый цвет в сочетании с разными цветами, можно достичь разнообразия в интерьере.
Via white color Вы можете изменить интерьер, добавив разнообразные аксессуары, которые придают интерьеру стиль и современность. Это диваны, дополненные множеством подушек, разнообразные столики, постеры на стене также идеально вписываются в интерьер.
Помните! Красиво смотрятся акценты в квартире. Например, если у вас яркий диван, пусть он дополнится яркими цветными подушками.
Для того, чтобы после ремонта в однокомнатной хрущевке придать интерьеру красивый внешний вид и закончить, сделайте все на свой вкус.
Не сопровождайте квартиру в ярких тонах, если ваш любимый, например, зеленый. Можно подобрать мебель, оформить комнату в светло-зеленых тонах, чтобы не сужать и без того далекое от просторного помещения.
Нравится студийные варианты современных квартир? Смотрите — много примеров переоборудования жилого помещения.
Не забывайте использовать то, что вам предлагают современные технологии. Раньше все использовали купоны под телевизор. Такой вариант уже сейчас можно найти в интересном стиле и подобрать интерьерную тамбу. Это не всегда выглядит: скорее, напоминает реликвию постсоветского времени.
В маленькой комнате это совершенно неактуально, так как популярны подвесные телевизоры, поэтому лучше всего закрепить на подставке на стене. Так дизайн однокомнатной квартиры-хрущевки будет восприниматься легче, а в квартире станет просторнее.
Желательно придерживаться современных тенденций, так как в результате получится компактность, удобство и функциональность помещения.
Теперь можно подобрать при ремонте однокомнатной квартиры в хрущевке, как на фото, небольшой холодильник. На кухне небольшой 1-комнатной квартиры ее лучше разместить в дальнем от входа углу, так как в любом случае это будет самый крупный объект в этой комнате.
Если финансы позволяют заказать горизонтальный холодильник, который не только выполняет функцию по назначению, но и является настольным.
Ремонт в однокомнатной квартире поможет Вам создать уют в доме. Вы можете увидеть несколько вариантов на фото и подобрать для себя лучшую идею или, возможно, объединить несколько и создать что-то другое, уникальное:
Во всяком случае, в маленькой хрущевке, даже если ее габариты ограничиваются всего 30 кв. Метров, лучше сделать ремонт по возможности с перепланировкой. Тогда вам будет намного комфортнее жить и полноценно отдыхать дома после тяжелого рабочего дня.
Вы владелец маленькой однокомнатной квартиры и не знаете, как уместить на 30 кв метров всю необходимую мебель, чтобы в комнате было свободное пространство. Поможем решить проблему нехватки территории, используя нетрудные приемы профессиональных дизайнеров.
Обычно однокомнатные квартиры в домах хрущевского дома, по своей площади, составляют около 30 кв. М. Метро, из них 16,17 или 18 кв.Счетчики даны под комнату, 3-4 метра под кладовку, остальное занимает кухня и санузел. При такой ситуации в маленькой квартире очень сложно разместить необходимую мебель, поэтому каждый уголок стоит использовать рационально. Для этого стоит отдать предпочтение мебели, изготовленной по индивидуальным размерам, а лучше использовать трансформируемые предметы мебели. Это поможет решить проблему ограниченной территории.
Сложность дизайна интерьера однокомнатной квартиры состоит в том, что в ней необходимо оборудовать все необходимое. Зоны комфортного проживания:
- спальное место;
- столовая и гостиная;
- зона отдыха;
- рабочих мест.
А в том случае, когда в однокомнатной квартире проживает семья с детьми, то придется продумать устройство игровой зоны, а также выделить детей в комнату для уроков кулинарии.
На фото: дизайн однокомнатной квартиры 30 кв. м.
Организовать все это на ограниченной площади так, чтобы интерьер комнаты выглядел привлекательно и был функциональным, достаточно сложно, но вполне реально. 30 кв. М. Необходимо правильно распределить по всем функциональным зонам, для каждой из них достаточно места.Для решения этой задачи можно использовать различные дизайнерские приемы, позволяющие визуально расширить пространство комнаты и других помещений.
Советы профессиональных дизайнеров помогут справиться с задачей и выбрать подходящий дизайн для маленькой квартиры.
Устройство для принятия цветовых решений для небольших помещений
На фото: дизайн однокомнатной квартиры 30 кв. м. в светлых тонах
При оформлении маленькой комнаты важно уделить внимание выбору цвета.Дело в том, что определенные цвета способны зрительно расширить пространство — это световая гамма, добавляющая света и простора. Поэтому дизайн всего помещения необходимо выполнять с использованием:
- белый;
- молоко;
- светло-серый;
- нежно-бежевый;
- синий и любой другой светлый оттенок.
Цвет следует учитывать не только при оформлении стен, потолка и пола, но и при выборе мебели и текстиля для однокомнатного жилья.Так, деревянная и мягкая мебель светлых тонов, шторы и обивка должны быть светлыми, но яркие акценты, правильно подобранные по цвету, пойдут только на пользу и внесут в интерьер изюминку и радостное настроение.
Освещение в маленькой комнате
30 кв. Однокомнатную квартиру можно визуально расширить, если правильно организовать освещение во всех комнатах. Следует учитывать как естественное, так и искусственное освещение.
На фото: дизайн однокомнатной квартиры с люстрой
Необходимо помнить, что чем больше света в комнате, тем просторнее она воспринимается визуально.Поэтому если в комнате 17-18 кв. м., достаточно одного центрального освещения с помощью потолочной люстры и небольшого бра или бра. Но в комнате 15-16 кв. м., необходимо добавить света дополнительными светильниками, которые следует разместить в каждой функциональной зоне. В маленькой комнате в 11 кв.м для зонирования пространства лучше использовать свет, а не перегородки и другие приемы.
На фото: дизайн однокомнатной квартиры 30 кв.м. с многоуровневым освещением
Все пространство 30-метровой однокомнатной комнаты должно быть ярко освещено, тогда она покажется намного больше. При этом дизайн осветительных приборов должен четко гармонировать с остальным дизайном интерьера. Если светильники стиля не сочетать с остальными предметами интерьера, комната потеряет гармонию и будет выглядеть некрасиво.
Увеличить количество света, а значит, визуально расширить пространство помогут зеркала.
Выбор стиля
На фото: дизайн однокомнатной квартиры 30 кв.Японский стиль м.
Для 30-метровой однокомнатной комнаты лучшим выбором будет стиль Хай-тек, минимализм или японский стиль. В этом случае дизайн должен быть выдержан в строгом соответствии со стилем. Горная мебель и максимальная функциональность — вот что характерно для этих стилей. Поэтому продумывая дизайн на площади 30 метров, следует уделить максимум внимания подбору мебели, текстиля и декоративных элементов, присутствующих в интерьере.
На фото: Дизайн однокомнатной квартиры в стиле Hi-Tech
.Отличным решением для увеличения площади может служить студия, когда можно убрать перегородки и создать общую комнату, разделенную на функциональные зоны.В такой ситуации небольшие помещения 11, 15, 16, 17 и 18 метров можно увеличить не только визуально, но и за счет добавления нескольких метров полезной площади.
На фото: студийный дизайн площадью 30 квадратных метров. м.
Обычно в хрущевских домах есть кладовая, которая занимает около 4-5 квадратных метров, ее с успехом можно использовать как гардеробную, тем самым избавив комнату от громоздкой мебели для хранения вещей. Или снести перегородку и расширить пространство прихожей, доведя ее площадь до 11 метров.
Дизайн кухни
Важным фактором, способствующим расширению пространства, является правильный и грамотный дизайн кухни. Здесь может быть несколько вариантов решения, главное, чтобы дизайн этого помещения не ограничивал его функционал. То есть будет уместно использовать мебель-трансформер встраиваемую бытовую технику, грамотное разделение на рабочую и обеденную зоны общего кухонного оборудования.
На фото: Дизайн кухни в квартире 30 кв.м.
Если вы выбрали студийный вариант, то дизайн кухни должен быть выполнен с учетом остального пространства. В противном случае дисгармония может убить даже самый привлекательный дизайн. Но добавление дополнительных метров к 15, 16, 17 и 18 метрам жилых помещений сыграет положительную роль в расширении пространства и создании более просторных помещений.
Как видим, при правильной организации пространства можно использовать даже 15, 16, 17 и 18 м, чтобы комната казалась свободной и привлекательной, главное все тщательно продумать до мелочей, грамотно использовать- известные приемы и рационально использовать полезную площадь.
Подбор мебели и текстиля
На этот вопрос тоже стоит обратить внимание, если комната всего 11, 15, 16 или 18 м. Раздвижные столы, навесные полки, угловые шкафы, раскладные диваны, детские двухъярусные кровати, невысокая мебель — все это станет отличным выбором для размещения на небольшой площади. Наличие в мебели стеклянных элементов также поможет зрительно расширить пространство. Прозрачные или матовые столешницы и дверцы внесут легкость в комнату. На это можно рассчитывать, используя прозрачные световые шторы на окнах, или использовать римские или рулонные шторы.Ламбрекены и тяжелые шторы темных цветов, недопустимо использовать в ограниченном пространстве.
Видео — Дизайн малогабаритной двухкомнатной квартиры
Однокомнатные квартиры более доступны по цене, поэтому пользуются спросом. Несмотря на то, что такие квартиры намного дешевле, это не значит, что они хуже. Открытое пространство дает множество возможностей при создании интерьера, которые невозможно реализовать в обычной квартире. В основном их приобретают молодые люди без детей, но даже большую семью вполне можно уместить без ущерба для потери личного пространства.Как создать дизайн квартиры-студии 30 кв.м. Разберем в статье.
30 кв.м. Немного, но все же можно разместить все необходимое. Создавая интерьер в небольшом пространстве, вы стараетесь использовать стили с минимальным набором декоративных деталей, такие как: скандинавский, хай-тек, современный стиль и минимализм. О последнем и пойдет речь в статье. Больше вариантов оформления в статье -.
Прием зонирования пространства современные дизайнеры используют часто, а в однокомнатной квартире это просто необходимо.Для комфортного проживания человеку необходимы комнаты разной планировки. Минимальный набор: кухня, ванна, спальня, прихожая, туалет. Еще нужно организовать отдельную рабочую зону и столовую. Все остальное устраивает уже по желанию.
Отделить одну комнату от другой можно стенами из гипсокартона. В этом случае слух, конечно, будет хорошо, но отдельный уголок, скрытый от глаз, все равно будет. Если вы живете один, можно не закрывать стены полностью, а просто поставить перегородки.
Самый простой вариант — шторы или полость. В отличие от перегородок из гипсокартона, шторы можно в любой момент отодвинуть и полностью открыть комнату.
Другой вариант — стекло или зеркало. Стеклянные перегородки выделят пространство, не сужая его. Стекло для бани можно использовать матовое, а для остальных помещений глянцевое.
Самая простая рецепция отдела — обычный шкаф или стеллаж. Так зона будет разделена, при этом шкаф выполняет не только роль перегородки, но и системы хранения, что увеличивает функциональность помещения.
Если вам и так мало сантиметров и делить квартиру вам не хочется, то можно создать эффект зонирования и с помощью лечебных средств. Например, коврик поможет создать нужный эффект, обозначив зону гостиной.
Различные облицовочные материалы с четкой или размытой границей также помогут различить разные уголки квартиры. Чем ярче выражена граница, тем ярче будет переход.
Также добиться такого эффекта можно с помощью освещения.Многоуровневая конструкция с множеством разных точечных светильников поможет создать приглушенный свет в спальне и яркий в рабочей зоне. Вы можете добавить лампы для каждой зоны. Выключатели основного света неплохо разместить в нескольких местах по всей квартире. Так будет намного удобнее.
Основные принципы минимализма
Минимализм любит просторные открытые помещения. А что может быть более открытым, чем однокомнатная квартира? Поэтому такой стиль не подходит для оформления такого рода помещений.Хотя он и не любит перегородки, все же без них не обойтись. Но тогда стоит использовать стекло, чтобы они вписались в общую стилизацию.
Освещение должно быть ярким с множеством разных уровней. Можно установить центральный элемент освещения — люстру, а по краям точечные светильники. Разбавить интерьер можно с помощью светодиодных лент разных цветов.
Минимализм любит прямые линии и правильные геометрические формы. Все четко и лаконично.Никаких волн и завитков: ни прямоугольника, ни круга. Мебель C. декоративные элементы Недействительно: она должна быть одного цвета с четкими формами.
Минимализм не отличается яркостью. Поэтому в интерьере будут преобладать спокойные тона. Белый считается самым нейтральным, но оформление всей квартиры в таком цвете может привести к испорченному интерьеру. Попробуйте разбавить его более теплыми цветами.
Использует только два основных цвета. Чаще на контрасте: бело-черный или черно-серый.Для создания акцента можно использовать красный или желтый цвет. С серым хорошо смотрится зеленый.
Декоративных деталей должно быть как минимум. Стилю присуща идея стерильного порядка. Каждый элемент должен нести практическую функцию и только потом декоративную. Самый частый элемент декора — зеркала, их можно использовать в любом количестве.
Мебель должна быть строгой. В квартире-студии удобнее всего использовать мебель-трансформер или модульную.Чтобы пространство не было захламлено, следует организовать четкую систему хранения вещей. Все предметы обихода необходимо спрятать, обнажать их нельзя. Ничего лишнего: убираются все вещи в шкафу, ящики и корзины.
Цвета
Минимализм не любит рисунков и ярких красок. Но, в том случае, если вам самому это кажется скучным, вполне возможно нанести обои с рисунком или использовать яркие тона. Главное, чтобы все это было в виде акцента, а не использовать его в качестве основного фона.
Помимо белого, в минимализме используется серый цвет. Для контраста можно добавить черный цвет. При использовании более теплых бежевых оттенков нужно обращаться к блеклым тонам. Хорошо смотрится нежно-бледно-розовый, почти белый.
Балкон и лоджия
Если вы стали счастливым обладателем балкона в студии в студии, то вам невероятно повезло. Балкон можно использовать как отдельное помещение для организации зоны отдыха. В зависимости от его размера можно даже поставить кровать.Если у вас есть система отопления, вы можете спать там даже зимой.
Еще один вариант — кухня. В таких квартирах один из недостатков — отсутствие окон. Где-то всего один, иногда два, реже три. Но один из углов совершенно не вентилируется, поэтому если создать кухню, то пары и запахи не уйдут, равномерно распределившись по всей площади квартиры. При этом некоторые просто ставят тарелку на балкон, что позволяет готовить практически на свежем воздухе.
Так же можно организовать рабочую зону на балконе. Стол и табуреты очень ароматны даже в небольшом пространстве. Таким образом, вы отделяете рабочее место от общей комнаты. И вот как психологи утверждают, что это необходимо, иначе мозг полностью не отдыхает.
А если у вас есть лоджия, есть смысл снести перегородку и соответственно расширить комнату. Но в этом случае вы теряете немного места на лоджии.
Планирование
Расположение предметов интерьера в принципе не подчиняется каким-то строгим правилам.Главное, руководствоваться принципами стиля: как можно меньше мебели Каждый предмет должен нести в себе какую-то функцию.
Самый распространенный вариант: от центра к стенам. Так в центре зона отдыха: кровать или диван, а по углам: кухня и ванная. Это подходит для квартир с одним окном. Если у вас их два на соседних стенах, зону отдыха следует отнести к окну, а примерно ко второму — кухню.Для расположения бани подходят стены без окон.
Еще один вариант планировки — второй этаж. Смелые решения, но позволяет сэкономить столько места, что оно того стоит. На втором этаже можно обустроить спальню. И на первой кухне. Это уже не будет дешево и требуются высокие потолки.
Дизайн однокомнатной квартиры 30 кв. м требует особого подхода. Ведь на небольшой площади разместите необходимые предметы.Однако такой интерьер способен стать намного более креативным и уютным, ведь с небольшим пространством гораздо проще экспериментировать.
Увеличьте пространство.
Все хозяева стремятся создать в своей квартире просторную и уютную атмосферу. Однако выполнять такую задачу необязательно. Ведь конструкция малогабаритная 30 кв. м просто не в состоянии вместить все необходимые предметы интерьера. Как быть в этом случае?
Несколько интересных приемов позволят зрительно увеличить пространство.В итоге дизайн однокомнатной квартиры 30 кв. M создаст ощущение простора.
- На небольших территориях не следует использовать габаритную мебель. Лучше отдать предпочтение компактным функциональным предметам интерьера. Гардеробы, встроенные в стену или нишу, диваны-трансформеры, каркасная мебель — это отлично. Системы репозиториев можно спланировать и оборудовать где угодно. Даже небольшие ниши красиво превращаются в отличные шкафы.
- Визуально расширит пространство яркое освещение, убранство помещения выполнено в светлых тонах.Желательно устранить контрастные линии и акценты. Для украшения рекомендуется подобрать самый яркий оттенок (серый, белый, бежевый). Чтобы выделить зоны, используйте еще два цвета. Их выбирают на тон темнее. Однако переходы между подсказками не должны быть резкими.
- Если в квартире останавливаются 3 человека, то некоторых визуальных приемов недостаточно. В этом случае рекомендуется прибегнуть к перепланировке для создания чудесного дизайна однокомнатной квартиры 30 кв.м. Фото ниже позволяет рассмотреть один вариант. Площадь комнаты можно расширить за счет коридора, кухни, балкона.
Выбор стиля
Владельцу небольшой квартиры этот вопрос нужно продумать заранее. Важно учитывать, что не в каждом стиле можно сделать дизайн однокомнатной квартиры (30 кв. М). Следует отдавать предпочтение тем направлениям, которые подразумевают наличие небольшого количества мебели, декора, ведь комната не должна казаться «грубой».
Чаще всего для оформления малогабаритной квартиры используются стили:
- минимализм;
- высокие технологии;
- современный.
При этом выбирайте наиболее функциональные предметы интерьера. Например, спальное место можно прекрасно сочетать со шкафом для одежды или оборудовать кровать специальными ящиками.
Перепланировка квартиры
Чаще всего это единственный метод, позволяющий сделать функциональный дизайн однокомнатной квартиры площадью 30 квадратных метров.м. Хрущевка, а чаще всего именно такие квартиры отличаются малой площадью, имеет очень неудобную планировку. Миниатюрная кухня и не позволяет ставить на нее мебель. Поэтому хрущевки чаще всего подвергаются перепланировке.
Дизайн (30 кв. М) — выбор многих молодых людей или семей без детей. Ведь в результате перепланировки появляется одно большое пространство. Ею прекрасно можно оборудовать спальную зону.
Однако при таком подходе необходимо получать много разрешительных документов в государственных органах.И также необходимо будет предоставить освежающий проект. Поэтому, несмотря на, казалось бы, отличное решение, предлагает к его реализации несколько.
Способы зонирования
Если вы все же решились на переподготовку, то у вас будет прекрасная однокомнатная квартира. Интересно, что более просторные квартиры девелоперы предлагают нечасто. Студии даже на 30 кв. м, являются люксовыми. Поэтому вы можете считать себя обладательницей просторного помещения.
Рассмотрим, как сделать дизайн однокомнатной квартиры 30 кв.На фото в статье демонстрируются отличные приемы зонирования, которые способны разделить различные части функциональности.
Для разделения пространства в следующих методах используются следующие методы.
- Перегородки. Это самый простой способ разделить участки. Отличными перегородками может быть мебель. Хороший вариант — ширма. Часто используется гипсокартон. Он позволяет создавать стильные и очень красивые перегородки.
- Подиум. Это один из удачных вариантов. Разные уровни всегда выглядят довольно интересно.К тому же, если с помощью подиума выбрать спальное место, то можно обойтись и без кровати: там будет односпальный матрас. При этом несколько можно встроить в подиум
- Цветовое зонирование. Не забывай о нем. Например, для зоны гостиной можно использовать более холодную палитру, которая настроит рабочий образ. А спальня оформлена в теплой гамме, позволяющей расслабиться и хорошо выспаться.
Спальня
Если идея перепланировки полностью отклонена, то необходимо отбить от того помещения, которое у вас есть.
Хороший вариант — обустроить из комнаты одноместную спальню. В этом случае прием осуществляется на кухне, если, конечно, позволяет площадь последней. Достаточно поставить небольшой мягкий уголок, и кухонное пространство сразу превратится в уютную зону для гостей.
Интерьер спальни выполнен в традиционном стиле. Однако не стоит забывать о важных деталях. Необходимо предусмотреть наличие рабочего стола, ведь иногда нужно что-то написать.К тому же это будет отличное место для ноутбука.
Обязательно гордитесь чем-нибудь, кроме обычных шкафов.
Комната гостиная
Это самый распространенный вариант. Такой дизайн однокомнатной квартиры 30 кв. м можно смело классифицировать.
Единственная комната — это гостиная. При этом он одновременно выполняет роль спальни. Для реализации такой идеи следует использовать раскладной диван. Конечно, довольно неудобно, что такую конструкцию придется ежедневно разбирать и собирать.Но только при сложенном внешнем виде дивана Помещение будет максимально тесным.
Кроме того, именно так он подчеркивает наличие в комнате зоны для гостей.
Независимо от выбранного вами варианта помните, что в вашей квартире вы должны чувствовать себя комфортно. От этих критериев и отталкиваюсь. Иногда даже очень простые апартаменты со вкусом выглядят престижно, модно и стильно.
перепланировка однокомнатной квартиры в квартиру
Размещение в домах с типовым проектом квартир — обычное дело по всей России.И самый распространенный из них — «хрущевки», славящиеся своей маленькой кухней, низкими потолками и комнатушками, больше похожими на клетки. Перепланировка — реальная возможность улучшить свой дом, сделать его современным и уютным. Перепланировка 1 комн. Хрущевки 55 фото дизайнерских идей на нашем сайте.
Проблема, которая возникает непосредственно перед началом перепланировки — малая площадь таких квартир. Все-таки, как ни крути, потолки не поднять, да и комнату уже не заправить.Но выход, как всегда, есть! Он заключается в сносе перегородок и освобождении единого большого пространства.
Дизайн однокомнатной квартиры перепланировки хрущевки, в большинстве случаев пространство кухни и большой комнаты, однако объединение не должно быть полным. Для лучшего зонирования подойдет арка, барная стойка. Но, если полного объединения избежать не удалось, пространство можно разделить по-разному. напольное покрытие, цвет стен, расстановка мебели.Перепланировка однокомнатной хрущевки 30 кв.м фото ниже:
Стену маленькой комнаты можно сдвинуть, чтобы уместилась только двуспальная кровать. Это будет только место для отдыха, а основное времяпрепровождение будет проводиться в большом просторном помещении, еще больше увеличенном за счет перемещения стены меньшего помещения. Такой вариант идеален для одного-двух человек, не имеющих детей.
Перепланировка 1 комнаты хрущевки — внешний вид ребенка определяет обустройство отдельной комнаты и для него.
- Этого можно добиться, превратив «кабинет» в детскую спальню.
- В связи с «отчуждением» небольшого пространства в спальне (если позволяет площадь) или большого помещения, расширенного за счет кухни, коридора и одной или нескольких комнат.
- Унитаз рационально совместить с ванной, установив душевую кабину вместо громоздкой ванны.
- В этом случае вы можете разместить больше в ванной. стиральная машина и мебель для предметов домашнего обихода.
- Для переноса сантехники может потребоваться частичный или полный перенос водопроводных и канализационных труб.
Перепланировка однокомнатной квартиры в хрущевке фото:
Ни в коем случае нельзя ломать несущие стены, определение которых не всегда возможно для профессионалов, систем вентиляции, газовых труб. В этом случае вам на помощь придет специальная организация, имеющая лицензию на проведение такого рода обследования. Стихийная перепланировка нередко заканчивается неудачей и грозит обрушением конструкций жилых помещений и гибелью людей.
Капитальный ремонт однокомнатной квартиры в хрущевке
Планируете ли вы капитальный ремонт своей квартиры? Тогда запаситесь не только средствами, но и терпением! Перепланировка 1 комнаты хрущевки фото, конечно, если вы выбрали капитальный ремонт квартиры, то наверняка запланировали не только кардинальное изменение всего стиля жилого помещения, но и внедрение креативных и нестандартных решений во всем дизайн-архитектура.Приступая к перепланировке квартиры, приглашенный дизайнер будет обязан предложить оригинальный проект, в котором будут учтены все новые требования заказчика (вашего).
Организуя капитальный ремонт в жилом массиве, необходимо будет справиться с большим объемом работ и провести полную замену существующих в квартире коммуникаций (внутренних). Это не только система электроснабжения, водоснабжения и канализации, но и система отопления и кондиционирования.Строительные тендеры помогут провести качественный капитальный ремонт в вашей квартире, который рассчитан не только на предоставление качественных специалистов, но и приемлемые для вас цены по уровню ремонтных или строительных работ … Перепланировка однокомнатной квартиры. комната хрущевка 30 кв м фото:
Это принципиально важно при ремонте старых квартир, где планируется замена окон и дверей (входных и межкомнатных дверей).Безусловно, любой капитальный ремонт проводится на высоком уровне, где закупаются новейшие технологии и самые подходящие стройматериалы. Здесь не обойтись без штукатурки стен, стяжки пола, отделки стен, сложных архитектурных дизайнерских решений, где в современных формах интерьер должен быть лаконичным и продуманным.
Дизайн однокомнатной квартиры перепланировкой по хрущевке — многие заказчики любят стилизацию стен, поэтому заказывают не только оригинальные арки и ниши, но и колонны необычной формы или даже оригинальную отделку окон.Особенно востребованы стилистические решения v креативного дизайна квартир.
Капитальный ремонт
Чтобы провести капитальный ремонт своей квартиры, нужно запастись терпением и сначала тщательно просчитать все затраты. Сбалансированный подход ко всему, в том числе к качеству работы, а также профессиональный подбор материалов, позволит избежать ненужной траты не только денег, но и соблюдать договорные обязательства, и что очень важно уложиться в заранее согласованные сроки выполнения работ. сдача объекта.
Поэтому желательно не только грамотно сделать смету и определиться с фиксированной суммой, которая пойдет на приобретение всех стройматериалов и оплаты труда рабочих, но и заключить договор с подрядчика, тем самым ограничивая его отходы на ремонтные работы.
Очень важно контролировать сам процесс закупки материалов и проводить контроль каждый день с соблюдением сроков, тем самым показывая слабые места.Перепланировка 1 комнатной квартиры в Хрущевке фото:
42
0003
42
0003
Дизайн и перепланировка типовой хрущевки однушки — задача не из легких, но выполнимая. Можно, конечно, самостоятельно изучить различные дизайнерские решения и схемы, как примерно от 30 кв.метров, чтобы создать свой неповторимый шедевр, но для этого нужно иметь какое-то подобие художественного стиля, пространственного мышления и так далее и так далее. Придется перелопатить кучу сайтов, посвященных ремонту и дизайну, и голова гарантированно закружится и начнет болеть.
Лучший способ найти специалиста, который бы воплотил в себе все необходимые качества и таланты — дизайнера и строителя, но, как правило, таких людей среди знакомых нет. Или обратиться в конструкторское бюро, которое составит проект, проконсультирует бригаду строителей и даже осуществит авторский надзор за объектом — это будет стоить денег, причем немалых.
Но в любом случае, прежде чем искать кого-то, нужно еще иметь представление о будущей реконструкции дома, вариантах дизайна, необходимых документах и т. Д.
Стоит сразу отметить, что «однушки» постройки 50-60-х годов, как правило, имеют правильную геометрию, что позволит наиболее рационально использовать каждую площадь при реконструкции. сантиметр небольшой площади.
Как отмечалось в предыдущих статьях по дизайну, наиболее распространенными вариантами изменения пространства 1-комнатной квартиры являются:
- при наличии раздельного санузла совмещен
- если совмещен санузел — расширить за счет прихожей
- расширение прихожей за счет перехода на кухню
- прихожая совмещена с кухня (исключение — если плита газовая)
- зонирование (изоляция) зоны отдыха (спальни)
Это, конечно, далеко не все варианты, но для воплощения самых смелых фантазий этого вполне достаточно.1-комнатная квартира идеально подходит для молодых людей, у которых (пока) нет детей, пожилых пар и одиноких людей. Но, к сожалению, часто бывает, что на 30 квадратах должны сосуществовать три, четыре и даже пять человек, здесь просто необходимо принять кардинальное решение поделить пространство так, чтобы каждый чувствовал в нем свой уголок, где мог бы уединиться. .
Молодую семью из трех человек можно разместить на 30-40 квадратах, превратив 1 комнату в две, одна из комнат естественно будет детской, а другая — гостиной и спальней одновременно для родителей, что делать.
Вам могут предложить следующие варианты перепланировки:
Кухня, холл и коридор объединены в единое пространство — квартира визуально становится просторнее, конечно, жилая площадь увеличивается, если в отделке стен используются зеркальные поверхности. Зону кухни можно обрезать барной стойкой, расположив ее под углом к несущим стенам.
Гостиная кухня также совмещена. При наличии раздельного санузла — объединяют его и увеличивают пространство прихожей, что позволяет разместить шкаф-купе.Также при зонировании пространства в гостиной с помощью книжного шкафа получится полноценное место отдыха.
Качественно увеличить жилую площадь можно и за счет утепления балкона и превращения его в рабочий кабинет, но это требует согласования со специалистами, так как можно повлиять на несущие стены и изменить схему отопления жилища.
Также, как вариант, можно увеличить площадь ванной, пристроив часть прихожей — стиральная машина уходит в ванную.А за счет слияния пространств кухни, прихожей и холла получается жилая площадь, достойная по объему и по своей функциональности. Также за счет увеличения периметра стен на кухне умещается вся бытовая техника. Барная стойка, расположенная в стене между окнами, идеально зонировала пространство гостиной и кухни. В самом зале, помимо дивана, можно разместить стол и создать рабочее место, а также достаточно места для гардеробы, где будут храниться вещи и предметы.
Необходимо обратить ваше внимание на некоторые нюансы. Задумав перепланировку со сносом стен, нужно четко представлять, какие стены несущие, а какие нет. Если вы решили прикоснуться к несущей стене, например, вырезать в ней проем, то этот проем необходимо укрепить специальными конструкциями, причем сделать это должны специалисты и с разрешения соответствующих организаций. Любительское выступление здесь недопустимо и просто опасно!
При совмещении ванной и туалета необходимо помнить о гидроизоляции всей совмещенной площади.Также запрещено увеличение площадей туалета, ванной и кухни из-за площади жилого помещения — помните об этом. Исключение может быть, если у вас есть первый этаж и подвал или магазин под вами.
Нельзя перенести кухню на место гостиной, как и туалет с ванной — коммуникации (вытяжка, водопровод и канализация) не предполагают такой смелой и легкомысленной инициативы. При газовой плите — категорически запрещено совмещать отдельную комнату с кухней, в любом случае нужна перегородка, либо менять газ на электричество.Все эти точки можно найти в сети или напрямую связавшись с БТИ, ЖКО и др.
Вот пример того, как работают дизайнеры. Что можно сотворить на 28 кв. М, найдено на просторах Сети. Судя по потолкам, это не хрущевка, а старинное здание 50-х годов в центре Москвы.
Пространство можно зонировать по-разному: стены, пол, потолок.
Планировка однокомнатной хрущевки, помимо прочих недостатков (небольшие площади комнат, низкие потолки), делают эту квартиру некрасивой.Однако собственниками таких квартир является большое количество людей. Кто-то всю жизнь прожил в этой квартире, кто-то унаследовал ее и т. Д. Сегодня мир дизайна и яркие изображения в Интернете побуждают людей делать свои дома красивее и уютнее. В связи с этим владельцев однокомнатных квартир все больше интересует тема перепланировки собственной квартиры. Мы решили помочь вам в этом вопросе и предлагаем 3 примера перепланировки 1-комнатной хрущевки.
Вариант 1
Для кого: Для семьи или молодой пары
Площади : кухня — 6,4 кв.м, санузел — 2,7 кв.м, постирочная — 0,6 кв.м, спальня-гостиная — 16,6 кв.м, коридор — 3,3 кв.м.
Особенности: Расстановка мебели в гостиной-спальне довольно распространена. Зонирование в этой комнате сделано с помощью. Вход на кухню через главную комнату, а на месте предыдущего прохода появляется небольшая прачечная.За дверью на кухне есть небольшая полка для хранения вещей. Перенесли вход в баню; вместо обычной ванны в ней устанавливается душевая кабина. Основные места хранения: гардероб верхней одежды в коридоре и два вместительных шкафа в гостиной. Дополнительные места для сидения можно устроить на застекленном балконе.
Вариант 2
Для кого: Для семьи или молодой пары
Квадраты : Кухня-гостиная-спальня — 19.9 кв.м., санузел — 2,7 кв.м., гардеробная — 4,3 кв.м., коридор — 1,6 кв.м., постирочная — 1,1 кв.м.
Особенности: Снос части стены между кухней и большой комнатой позволил правильно организовать пространство. В результате получили уютную кухню-гостиную и небольшую спальню, разделенную полкой с перегородкой, на которой установлен телевизор. В задней части спальни находится вход в. В углу коридора находится прачечная с кладовкой.
Примеры дизайна предлагаемой перепланировки:
Вариант 3
Для кого: Для семьи с ребенком
Площади : кухня-гостиная-спальня — 14,9 кв.м, санузел — 2,7 кв.м, детская — 5,1 кв.м, гардеробная — 2,8 кв.м, коридор — 3,1 кв.м. , складское помещение — 0.8 кв.м. …
Особенности: Сделать в однокомнатной хрущевке практически трехкомнатную квартиру вполне реально.Для этого достаточно грамотно распорядиться каждым квадратным метром … Две кладовки в коридоре: гардеробная и кладовая избавят остальную площадь от массивной мебели. Перенесенная дверь в ванную позволит использовать часть коридора и большую комнату для гостиной и спальни, которые разделены стеллажом. Широкий проход на кухню необходим не только для, но и для достаточной вентиляции большого помещения. Оставшаяся площадь отведена под детскую, в которой есть стол, кровать и шкаф.При желании можно застеклить и утеплить балкон, это позволит перенести туда стол или шкаф. Таким образом, свободное пространство в комнате увеличится.
Примеры дизайна предлагаемой перепланировки:
Планировка однокомнатной хрущевской квартиры должна была кардинально изменить квартиру — превратить ее в уютную студию. Пруф-проект: как продуманный хрущевский интерьер может зрительно увеличить пространство.
На фото:
Проектно-дизайнерское бюро m2project — участник конкурса «Лучший дизайн квартиры» на сайте pinwin.ru
Ребятам из конструкторского бюро m2project был передан типовой однокомнатный хрущевский в Москве кирпичный пятиэтажный дом 1960 года постройки. Интерьер однокомнатной квартиры в хрущевке требовал грамотного обновления. Планировка однокомнатной квартиры в хрущевке — не такое уж широкое поле для экспериментов, но люди знающие и творческие и тут нашли, где развернуться. Весь интерьер 1-комнатной квартиры в хрущевке расположен на открытом пространстве площадью 30 кв.м. Как видно на фото интерьера однокомнатной квартиры в хрущевке, есть все необходимое для жизни: кухня, столовая, рабочее место, гостиная / спальное место и санузел.Планировка 1 — комнатной хрущевки позволила создать ощущение большого открытого пространства. Чистые серые и белые тона стен уравновешивают насыщенный цвет постеров, а яркие цвета стула и стола на балконе создают радостное настроение.
Комментарий в ФБ Комментарий в ВК
.
Санузел лучше не трогать, потому что потом будет невозможно установить соответствующие коммуникации, если санузел будет расположен над другой комнатой. Лучше санузел оставить на своем месте.
Кроме этого, вход в туалет и ванну не должен располагаться на границе с остальным пространством. Вход следует перегородить небольшой перегородкой раздвижного типа, как показано на фото;
В результате можно получить стильное разделение и небольшой столик для обеденной зоны;
К тому же с неприятными запахами можно справиться при помощи хорошей вытяжки на кухне.
Здания имели 4 или 5 этажей.
Дополнительное окно в гостиной устанавливается в угловых квартирах. Недостатком является то, что проход из коридора в кухню идет через зал. Санузел совмещенный. Размер жилой комнаты составляет 17,2 квадратных метра. Подобная планировка может доставить проблемы или открыть перед вами новые возможности — в зависимости от желаемого результата.
Планировка эта угловая.
Изнутри стенки нужно качественно утеплить – слоев той же минваты нужно поставить не менее трех, иначе кухня начнет промерзать. В ней будет некомфортно находиться, а из-за резкого перепада температур начнет образовываться конденсат. Изнутри стены обшиваются черновой отделкой, поверх которой ляжет чистовая.
Мебель и текстиль в жилой части квартиры будут напитывать запахи. Это же относится и к температуре. Если зимой дополнительный подогрев не помешает, то летом он совершенно ни к чему. Если в комнате установлена сплит система, то открытость кухни станет для нее дополнительной нагрузкой.

