Планировка хрущевок 2 комнаты с размерами: Планировка хрущевки 2 комнаты — варианты, порядок действий, примеры
Интересные варианты планировок 2-х и 3-х комнатных хрущевок
Папа мастер! > Строительство > Интересные варианты планировок 2-х и 3-х комнатных хрущевок
Такое родное слово — хрущевка. Кто из старшего поколения не жил в них. А ведь были существенные различия в планировках домов даже одного года постройки. Хрущевка — это дома, самой распространенной планировки в России. Строительство таких домов массово продолжалось 1958 года по 1985. Всего здания строились нескольких серий: 1-464 (1960-1967 гг), 1-335 (1963-1967 гг), 1-434 (1958-1964 гг), 1-434С (1958-1964 гг). Однако нельзя сказать, чтобы между ними были значительные отличия.
Практически для всех хрущевок были свои общие неприятные закономерности. Они отличались маленькими кухоньками общей площадью от 5,8 до 6,2 квадратов. Кухни были в основном газифицированы, на некоторых устанавливались газовые колонки. Вентиляция на кухнях проектировалась естественно-притяжная.
Санузлы чаще всего были совместные.
Квартиры отличались обилием кладовок, встроенных шкафов и антресолей. Если учесть, что высота потолка была всего два с половиной метра, то это создавало громадные неудобства. Казалось, что потолок буквально нависает над головой. Тесные прихожие и плохая звукоизоляция дополняли этот неустроенный быт.
В подъезде располагалось по 4 выхода на лестничной площадке. На каждом этаже, кроме первого был небольшой балкон.
Варианты планировок 2-х комнатных хрущевок
- планировка 2-х комнатной квартиры в хрущевке
- варианты планировки 2-х комнатной квартиры в хрущевке
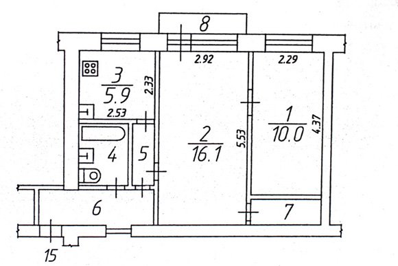
Наибольшие различия в планировке 2-х комнатных хрущевок все равно присутствовали. Это случилось из-за того, что проектировались они различными по общей площади от 30 кв м до 46. Жильцы придумали свои названия для планировки 2-х комнатных хрущевок. Появились такие названия: «вагончиком», «трамвайчиком», «распашонкой».
В разных сериях были довольно большие различия. Встречались варианты с одной проходной комнатой, были полностью изолированные. Большой интерес представляют варианты с большой кладовкой пристроенной к помещению, за счет которой можно было увеличить и жилое пространство, и сделать целую гардеробную.
ЧИТАТЬ ПО ТЕМЕ:
Дизайн гардеробных с фото готовых примеров – выбирайте вариант для себя!
Например, 2-х комнатная планировка в хрущевке «вагончиком» – это квартира, в которой окна разведены на разные стороны дома. Помещения здесь смежные, расположены друг за другом ( как вагончики поезда). Однако, если убрать весь негатив связанный с серией, то это довольно удобно. В любом случае, это, конечно, полноценное жилье, в котором есть спальня и гостиная.
Второй вариант — это распашонка. В такой квартире окна выходят на одну сторону. А одна комната обязательно проходная. Основное отличие заключается в том, что одна комната существенно меньше другой.
Варианты с более большими площадями имели изолированные помещения. Была т.н. «миниулучшенная» вариация. Такая квартира похожа на аналогичные квартиры в 9-этажках, кроме очень маленькой хрущевской кухоньки. Эти проекты имеют даже раздельный санузел.
И еще одну вариацию можно отметить. Не особенно часто встречается, так называемая, «бабочка». Раздельные одинаковые по площади большие комнаты разделены по центру маленькой кухней, санузлом и крохотным коридорчиком.
Варианты планировок 3-х комнатных квартир в хрущёвках
- варианты планировки 3-комнатной квартиры в «хрущевке»
- планировка 3-комнатной квартиры в «хрущевке»
В хрущевках планировка 3-х комнатных квартир имеет те же недостатки, что и остальные — маленькие кухни и смежные комнаты. Трешки тоже отличались довольно большим разбросом по площади от 44 до 60 кв м.
Самая маленькая планировка в 3-хкомнатной хрущевке — это почти 2-хкомнатная книжка, в которой две комнаты очень маленькие (как будто одну комнату поделили на 2 части). Другой вариант — 2 большие комнаты смежные, третья маленькая отдельная — очень удобный. Третий вариант похож на трамвай с разбросом двух жилых помещений на две стороны дома. Эта планировка в 3-хкомнатной хрущевке иногда носит название Г-образной. В самых больших квартирах площадью до 60 кв м встречается полностью изолированное расположение комнат.
Рассуждать об удобстве и неудобстве серии можно долго, исходя из возможностей перепланировки или рыночной стоимости квартиры. Но главная цель, которая ставилась при строительстве таких домов была достигнута: большое количество людей переселилось из бараков в благоустроенное и отдельное жильё.
Похожие записи
Виды конструкций различных полов на железобетонных плитах, их составные слои. Оптимальные варианты
Железобетонное основание полов обладает замечательной прочностью, не.
..
Дом из поризованных керамических блоков теплее кирпичного!
Наряду с современными строительными материалами, практикуется изготовление…
Технология кладки стен из газобетонных блоков
По эксплуатационным характеристикам газоблоки в разы лучше кирпича. Процесс их…
Монолитное перекрытие в доме из газобетона: зачем, когда и как строить
Полностью состоящие из газобетонных блоков многоэтажные дома практически не…
Интересное на сайте
Технология кладки стен из газобетонных блоков
По эксплуатационным характеристикам газоблоки в разы лучше кирпича. Процесс их кладки настолько прост, что с ним справится даже полностью далёкий от стройки человек. Не являются …далее… »
Преображение за неделю или можно ли использовать гипсокартон в ванной
Несмотря на заявления производителей гипсокартонных листов о прекрасных влагостойких свойствах, большинство всё же не решается использовать их в местах повышенного риска, то бишь в кухне …далее.
.. »Преимущества домов из СИП-панелей
Дома, построенный по канадской технологии, удобны для проживания зимой и летом. Они теплые, практичные и подходят даже для сурового климата. Это обусловлено особенностями технологии. При …далее… »
Альтернатива блокам питания для шуруповерта 12в и 18в. Замена своими руками
Шуроповерт считается незаменимым аппаратом для специалистов, работающих им постоянно и для любителя, выполняющего отдельные виды работ. Этот инструмент стал лучшей альтернативой для отвертки, которая очень …далее… »
Станок для блоков своими руками – простое оборудование для изготовления керамоблоков, шлакоблоков, арболитовых, газосиликатных и других строительных блоков
В наше стремительное время на рынке стройматериалов появляется все новая продукция, преуспевающая по многим показателям своих предшественников. Интересным фактом является то, что некоторые стройматериалы можно …далее… »
история создания, характеристики, планировка и дизайн интерьера
Что такое хрущевка?
Хрущевка — это типовой многоквартирный дом, массово строившийся в СССР с конца 1950-х годов по 1980-е годы.
Эти дома получили свое название в честь Никиты Хрущева, который стоял у их истоков и увидел в них ответ на нехватку жилья после Второй мировой войны. Хрущевки имеют специфическую планировку и конструкцию, которая позволила экономить материалы и время на строительство.
Каждая квартира в хрущевке имеет отдельный балкон, а также ванную комнату, которая в то время была не столь распространена в жилищном строительстве. Размеры квартир в хрущевках обычно невелики, что приводит к определенным особенностям интерьера и дизайна, однако они продолжают оставаться популярным типом жилья до настоящего времени.
История создания и название
История создания хрущевок берет свое начало в конце 1950-х годов, когда СССР столкнулся с нехваткой жилья, в частности, для семей, которые оставались без крова после Второй мировой войны. На тот момент в стране было необходимо быстро и массово строить новое жилье, и именно тогда Никита Хрущев, который занимал важную должность в правительстве, предложил новый тип многоквартирного дома.
Хрущевки получили свое название в честь Никиты Хрущева, который лично участвовал в проектировании и создании данного типа дома. Сам Никита Хрущев был главным строителем в СССР, и благодаря ему было возведено множество жилых домов по всей стране. Хрущевки были первыми многоквартирными домами, которые строились с применением панельных конструкций, что позволило существенно ускорить процесс их возведения, а также экономить на материалах.
Характеристики типового дома хрущевки
Хрущевки являются типичными представителями многоквартирных домов, построенных в СССР в период с 1950-х по 1980-е годы. Они имеют свои характерные особенности, которые позволяют легко идентифицировать этот тип дома. Вот некоторые из наиболее характерных параметров хрущевок:
- Количество этажей: обычно 5-9, реже 2-4 или 10-12
- Высота потолков: 2,5-2,7 метра
- Площадь квартир: от 30 до 60 квадратных метров
- Планировка квартир: типичная квартира хрущевки имеет небольшую кухню, комнаты смежные или изолированные, коридор и санузел, часто совмещенный
- Балконы: появились только в середине 1960-х годов и имели площадь около 2 квадратных метров
- Материал стен: панельные конструкции, часто с утеплением в виде минеральной ваты или пенопласта
- Окна: деревянные или металлопластиковые, небольшие по размеру
- Пол: деревянные доски или линолеум
- Прихожая: обычно отсутствует, место для гардероба выделяется в коридоре
- Туалет: отдельный или совмещенный с ванной
- Дизайн интерьера: простой и функциональный, с минимальным количеством декора и украшений.

Хрущевки были созданы как дешевый и быстрый способ обеспечить жильем многие семьи в период острой нехватки жилья в СССР. Их характерные особенности, такие как небольшие квартиры, низкие потолки и простой дизайн, были определены не столько эстетическими соображениями, сколько экономическими и функциональными. Однако, несмотря на все недостатки, хрущевки остаются популярными жилыми домами и по сей день.
Планировка и размеры квартиры в хрущевке
Планировка и размеры квартиры в хрущевке имеют свои особенности. Типовая квартира в хрущевке имеет площадь примерно 30-60 квадратных метров и может быть как одно-, так и двухкомнатной. Характерной особенностью планировки является наличие коридора, который проходит от центральной комнаты к кухне и ванной комнате. В такой квартире, как правило, нет балкона, но есть застекленная лоджия.
Описание типовой планировки квартиры в хрущевке
Хрущевки изначально были задуманы как дешевые и массовые многоквартирные дома для рабочего класса.
-
Однокомнатная квартира: площадь составляет примерно 30 квадратных метров, включает в себя комнату, кухню, ванную комнату и коридор. В такой квартире нет балкона, но есть застекленная лоджия.
-
Двухкомнатная квартира с торцевой планировкой: общая площадь составляет примерно 45 квадратных метров. В такой квартире две комнаты, кухня, ванная комната и коридор. Особенностью такой планировки является наличие двух окон, которые выходят на разные стороны дома.
Двухкомнатная квартира с раздельными комнатами: общая площадь составляет примерно 50-55 квадратных метров. В такой квартире две комнаты, кухня, ванная комната и коридор. Особенностью такой планировки является наличие раздельных комнат, что позволяет обеспечить большую приватность и комфорт для жильцов.

-
Трехкомнатная квартира с комнатами проходного типа: общая площадь составляет примерно 60 квадратных метров. В такой квартире три комнаты, кухня, ванная комната и коридор. Особенностью такой планировки является наличие комнат проходного типа, которые располагаются между главной комнатой и другими комнатами.
Размеры квартиры и количество комнат
Стандартный размер квартиры в хрущевке составляет около 30-60 квадратных метров. Обычно это однокомнатные или двухкомнатные квартиры, но существуют и более крупные варианты с тремя или четырьмя комнатами. Однако, несмотря на небольшой размер, планировка хрущевок была спроектирована таким образом, чтобы обеспечивать максимальную функциональность и комфорт для жильцов.
Интерьер квартиры в хрущевке
Хотя квартиры в хрущевках могут быть небольшими, это не мешает созданию уютных и функциональных интерьеров. В данном разделе мы рассмотрим особенности интерьеров в хрущевках, включая дизайн кухни, гостиных и спален, использование цветовой гаммы и мебели, а также советы по максимизации пространства.
Дизайн интерьера в хрущевке
Квартиры в хрущевках имеют типовые планировки, которые накладывают определенные ограничения на дизайн интерьера. Однако, с помощью креативности и умелого использования пространства, можно создать уютное и функциональное жилье.
Например, двухкомнатная квартира в хрущевке обычно имеет размеры 40-45 квадратных метров. Вход в квартиру обычно ведет в прихожую, которая может быть использована для хранения одежды и обуви.
Затем, из прихожей можно попасть в гостиную, которая часто соединена с кухней. В такой квартире кухня имеет площадь около 6-7 квадратных метров. В гостиной обычно есть окно, а также вход в спальню, которая имеет размеры около 10-12 квадратных метров. В ванной комнате можно установить душевую кабину и умывальник, а площадь туалета обычно не превышает 1-2 квадратных метров.
Таким образом, с учетом размеров комнат и расположения входов и выходов, можно создать функциональный дизайн интерьера хрущевки. Важно умело использовать пространство и выбирать мебель, которая не будет занимать слишком много места, но при этом будет комфортной и удобной для жизни.
Однокомнатные квартиры в хрущевках обычно имеют площадь около 30 кв.м. Они состоят из одной комнаты, кухни, ванной комнаты и коридора. Вход в квартиру происходит через коридор, который имеет длину около 2-3 метров. Справа от коридора находится ванная комната, которая обычно имеет площадь около 4-5 кв.м. Слева от коридора располагается кухня, размер которой может быть от 5 до 7 кв.м. Она обычно имеет окно, которое выходит во двор или на улицу.
Пол, стены и окна в хрущевке
Хрущевки имеют некоторые особенности в отношении полов, стен и окон. Полы в хрущевках чаще всего покрыты линолеумом или ковровым покрытием, а также бетоном. Кроме того, в некоторых квартирах может быть установлен паркет или ламинат. Стены в хрущевках обычно отделаны обоями или краской, а также могут иметь текстуру штукатурки. Окна в хрущевках, как правило, имеют небольшие размеры, окна выполнены из дерева или металлопластика, а также могут быть оборудованы балконными дверьми.
Однако стоит отметить, что из-за дизайна и возраста зданий, в хрущевках часто встречаются проблемы с затеканием воды через окна, а также с теплопотерями через стены и окна.
Также, в связи с использованием дешевых материалов во время строительства, в хрущевках часто наблюдаются проблемы с шумоизоляцией и утечкой звука между квартирами.
Кухня, прихожая, туалет, ванная и балкон в хрущевке
Кухня, прихожая, туалет, ванная и балкон — это важные части хрущевки, каждая из которых имеет свои характеристики.
Кухня в хрущевке обычно небольшая, размером около 6-8 квадратных метров. Она часто имеет простую планировку и оборудована необходимой кухонной техникой, такой как плита, холодильник и мойка.
Прихожая в хрущевке, как правило, также небольшая, но все же достаточно просторная для хранения одежды и обуви. Туалет и ванная в хрущевке часто объединены в одном помещении и имеют площадь около 2-3 квадратных метров. Они обычно оборудованы стандартными сантехническими приборами. Балкон в хрущевке может иметь различную площадь, но часто он относительно небольшой и может использоваться для хранения вещей или как место для сушки белья.
Заключение
Хрущевки, несмотря на свои недостатки, были важным этапом в истории строительства жилья в СССР.
Они стали первыми массовыми домами, которые были доступны для приобретения обычным советским гражданам. Благодаря своей низкой стоимости и относительно быстрому возведению, хрущевки помогли решить острый вопрос с жильем в городах.
Однако, сравнивая хрущевки с другими технологиями строительства, такими как монолитно-кирпичные или блочные дома, можно заметить значительные различия в их качестве. Несмотря на то, что хрущевки были революционным достижением в своё время, сегодня эти дома считаются устаревшими и неудобными для жизни. Монолитно-кирпичные и блочные дома имеют более современную конструкцию и лучшую звукоизоляцию, а также большие возможности для дизайна интерьеров и планировки квартир.
Если вы хотите узнать больше о монолитно-кирпичной технологии строительства, мы предлагаем вам прочитать соответствующую статью нашего сайта Новостройки.SHOP. В ней вы найдете подробную информацию о том, какие преимущества и недостатки имеет монолитно-кирпичное строительство по сравнению с другими технологиями.
Обмен американо-советскими шпионами
10 февраля 1962 года Советы освобождают американского пилота-шпиона Фрэнсиса Гэри Пауэрса в обмен на советского полковника Рудольфа Абеля, высокопоставленного шпиона КГБ, пойманного в США пятью годами ранее. Двое мужчин были доставлены на разные стороны Глиникерского моста, который соединяет Восточный и Западный Берлин через озеро Ванзее. Пока шпионы ждали, переговорщики разговаривали в центре моста, где белая линия отделяла восток от запада. Наконец, Пауэрса и Абеля махнули вперед, и они пересекли границу на свободу в один и тот же момент — 8:52 утра по берлинскому времени. Незадолго до их перевода Фредерик Прайор — американский студент, задержанный властями Восточной Германии с 19 августа.61 — был передан американским властям на другом пограничном пункте.
В 1957 году Рейно Хайханен, подполковник КГБ, вошел в американское посольство в Париже и объявил о своем намерении бежать на Запад. Хайханен показал себя плохим шпионом за пять лет, проведенных в Соединенных Штатах, и его отозвали в СССР, где он опасался, что его накажут.
В обмен на убежище он пообещал агентам ЦРУ, что поможет разоблачить крупную советскую шпионскую сеть в Соединенных Штатах и найти ее руководителя. ЦРУ передало Хайханена ФБР для расследования заявлений.
Во время холодной войны советские шпионы работали вместе в Соединенных Штатах, не раскрывая друг другу своих имен и адресов, что было мерой предосторожности на случай, если один из них будет пойман или, как Хайханен, дезертирует. Таким образом, Хайханен изначально предоставил ФБР мало полезной информации. Однако он помнил, как его начальник, которого он знал как «Марк», отвел его в бруклинскую кладовую. ФБР разыскало складское помещение и обнаружило, что его арендовал некий Эмиль Р. Голдфус, художник и фотограф, у которого была студия в Бруклин-Хайтс.
Эмиль Гольдфус был Рудольфом Ивановичем Абелем, блестящим советским шпионом, свободно говорившим как минимум на пяти языках и знатоком технических требований шпионажа. После службы в разведке во время Второй мировой войны Абель выдал фальшивое имя и попал в лагерь беженцев в Восточной Германии, где успешно подал заявку на право иммигрировать в Канаду.
В 1948 году он проскользнул через канадскую границу в Соединенные Штаты, где приступил к реорганизации советской шпионской сети.
Узнав о побеге Хайханена, Абель бежал во Флориду, где оставался в подполье до июня, когда почувствовал, что можно безопасно вернуться в Нью-Йорк. 21 июня 1957 года он был арестован в манхэттенском отеле Latham. В его студии следователи ФБР нашли полый карандаш, которым скрывали сообщения, кисточку для бритья с микрофильмом, кодовую книгу и радиопередающее оборудование. Его судили в федеральном суде Бруклина, и в октябре он был признан виновным по трем пунктам обвинения в шпионаже и приговорен к 30 годам лишения свободы. Его отправили в федеральную тюрьму в Атланте, штат Джорджия.
ПОДРОБНЕЕ: 6 предательских шпионов времен холодной войны
Менее чем через три года, 1 мая 1960 года, Фрэнсис Гэри Пауэрс вылетел из Пешавара, Пакистан, за штурвалом ультрасовременного высококлассного самолета Lockheed U-2. самолет высотной разведки.
Пауэрс, нанятый ЦРУ пилот, должен был пролететь около 2000 миль над советской территорией на военный аэродром Бодо в Норвегии, собирая по пути разведывательную информацию. Примерно на полпути он был сбит над Свердловском на Урале. Вынужденный спасаться на высоте 15 000 футов, он пережил прыжок с парашютом, но был немедленно арестован советскими властями.
5 мая советский лидер Никита Хрущев объявил, что американский самолет-разведчик был сбит, а два дня спустя сообщил, что Пауэрс жив и здоров и признался в выполнении разведывательной миссии ЦРУ. 7 мая Соединенные Штаты признали, что U-2, вероятно, пролетал над советской территорией, но отрицали, что они санкционировали эту миссию.
16 мая в Париже состоялась долгожданная встреча лидеров США, СССР, Великобритании и Франции. Четыре державы должны были обсудить напряженность в двух Германиях и заключить новые договоры о разоружении. Однако на первом заседании саммит рухнул после того, как президент Дуайт Д. Эйзенхауэр отказался извиниться перед Хрущевым за инцидент с U-2.
Хрущев также отменил приглашение Эйзенхауэра посетить СССР.
В августе Пауэрс признал себя виновным по обвинению в шпионаже в Москве и был приговорен к 10 годам лишения свободы — трем в тюрьме и семи в колонии.
В конце судебного процесса в 1957 году Рудольфу Абелю удалось избежать смертной казни, когда его адвокат Джеймс Донован убедил федерального судью в том, что однажды Абеля могут использовать либо в качестве источника разведывательной информации, либо в качестве заложника для продажи в Советы для захваченного американского агента. В течение пяти лет своего заключения Авель хранил молчание, но последнее пророчество сбылось в 19 г.62 года, когда его обменяли на Пауэрса в Берлине. Донован сыграл важную роль в переговорах, приведших к обмену.
По возвращении в Соединенные Штаты Пауэрс был очищен ЦРУ и Сенатом от любой личной вины за инцидент с U-2. В 1970 году он опубликовал книгу Operation Overflight, об этом инциденте, а в 1977 году погиб в результате крушения вертолета, на котором он летел в качестве репортера лос-анджелесской телестанции.
Абель вернулся в Москву, где КГБ вынудил его уйти в отставку, опасаясь, что за пять лет его плена власти США убедили его стать двойным агентом. Ему дали скромную пенсию и в 1968 опубликованных мемуаров, одобренных КГБ. Он умер в 1971 году.
ПОДРОБНЕЕ: Шпион, который не позволил холодной войне разгореться
Загадочная смерть Сталина — ЧВК
В течение нескольких недель Иосифа Сталина мучили приступы головокружения и высокое кровяное давление. [] Его личный врач профессор В. Н. Виноградов посоветовал Сталину уйти с поста главы правительства по состоянию здоровья. Не этого хотел услышать Сталин от доброго доктора. Вскоре профессор заплатит за эту опрометчивость и неосмотрительность своим арестом и предполагаемой причастностью к печально известному заговору доктора (9).0027 дайло врачей
). По словам Дмитрия Волкогонова в Сталин — Триумф и Трагедия (1991), в ночь перед тем, как Сталин заболел, он осведомился у Берии о состоянии дела против врачей и конкретно о допросе профессора Виноградова.
Министр госбезопасности Лаврентий Берия ответил: «Помимо других его неблагоприятных качеств, у профессора длинный язык. Он сказал одному из врачей своей клиники, что у товарища Сталина уже было несколько опасных гипертонических приступов».[8]
Сталин ответил: «Хорошо, что вы теперь предлагаете делать? Врачи признались? Скажите [Семену Д.] Игнатьеву [министру охраны МГБ], что, если он не получит от них полных показаний, мы уменьшим его рост на голову». Берия успокоил Сталина: «Они сознаются. С помощью Тимашук и других патриотов мы закончим расследование и придем к вам за разрешением на открытый суд». Затем: «Устройте», — приказал Сталин. А оттуда они продолжали обсуждать другие вопросы примерно до 4 часов утра 1 марта 19 года.53.
Сталин был раздражителен и в плохом настроении. Он раскритиковал своих гостей. Волкогонов основывал свой рассказ на показаниях А. И. Рыбина, с которым он лично беседовал. Рыбин служил в НКВД, а позже стал одним из телохранителей Сталина. Но Рыбина не было там в последние дни Сталина.
О случившемся ему рассказали только гвардейцы. А в то время, когда Волкогонов писал свою книгу, эти гвардейцы не могли быть найдены или отказывались разговаривать[8].
Тем не менее, мы знаем, что гости в тот вечер стали пленными зрителями и не могли покинуть Ближнюю, ближайшую к нему дачу в Кунцево, без разрешения Сталина. Им просто нужно было дождаться, пока Сталин их уволит. Но Сталин не закончил. Он все еще жаловался, что руководство, среди которых было много его гостей в тот вечер, купается в лучах славы прошлого, но «они ошибались». Подразумеваемая угроза его внутреннему кругу была зловещей. Когда Сталин, наконец, встал и ушел, его потрясенные гости воспользовались случаем и покинули дачу. Георгий Маленков и Лаврентий Берия, два сталинских приспешника, которым он разрешил общаться в обществе, уехали вместе в одну и ту же Волгу. Остальные ушли отдельно.
В то утро Сталин не выходил из своей комнаты, а к полудню его штаб забеспокоился. Что еще более усложняло ситуацию, никому не разрешалось входить в его личные покои без приглашения.
Весь день домашний персонал и его личная охрана беспокоились и ждали выхода Сталина. Наконец, они успокоились, когда часовой снаружи сообщил, что свет в его столовой зажегся около 18:30. Волкогонов пишет: «Все вздохнули с облегчением и стали ждать звонка. Сталин не ел, не смотрел ни почту, ни бумаги. Это было очень необычно». Когда наступил поздний вечер, прислуга и охрана снова забеспокоились. Они обсуждали, что делать, пока явная паника не заставила их действовать. Было 11 часов вечера 1 марта 19 года.53.[8]
Пока Волкогонов много лет спустя брал интервью у Рыбина, российский журналист Эдвард Радзинский получил из секретных Российских архивов документы, имеющие еще большее отношение к последним дням жизни Сталина. В своей книге 1997 года «Сталин» Радзинский рассказывает, что 5 марта 1977 года, 24 9057 годовщины смерти Сталина , Рыбин организовал небольшую вечеринку, в которую вошли гвардейцы, находившиеся «на ближайшей даче примерно в то время, когда Сталин умер»[5].
Воспоминания гвардейцев были записаны, а Рыбин записал суть показаний, с которыми все согласились:
«В ночь с 28 февраля на 1 марта члены Политбюро смотрели фильм в Кремле. После этого их отвезли на ближайшую дачу. К Сталину там присоединились Берия, Хрущев, Маленков и Булганин, все они оставались там до 4 часов утра [; Близкий круг через несколько месяцев после события.] Дежурными в этот день были М. Старостин и его помощник Туков. Орлов, комендант дачи, был в отпуске, его заместителем был Петр Лозгачев. На даче была и Матрена Бутусова, присматривавшая за бельем Хозяина. После того, как гости разошлись, Сталин лег спать. Больше он никогда не выходил из своей комнаты».[5]
Открыть в отдельном окне
Преемники Сталина: Булганин, Маленков и Хрущев
Радзинский обнаружил, что Рыбин также записал отдельные показания гвардейцев. Заявление Старостина, которое было самым кратким, гласило: «В 19 часов тишина в номере Сталина стала нас тревожить. Мы (Старостин и Туков) оба боялись войти без вызова».
Поскольку войти боялись, то вошел новоиспеченный зам Лозгачев, и «именно он нашел Сталина лежащим на полу у стола». Более того, по словам Старостина, Сталин отдал приказ, которого никогда раньше не отдавал, и впоследствии это заявление подтвердил Лозгачев. Сталин сказал своим слугам и опричникам словами Тукова: «Я иду спать. Я не должен хотеть тебя. Ты тоже можешь лечь спать».
Но дело было не только в этом, и спустя много лет после кропотливой настойчивости Радзинский разыскал Петра Васильевича Лозгачева, и старый гвардеец, «все еще крепкий, несмотря на свой возраст», наконец согласился на интервью о последних днях жизни Сталина. По словам Лозгачева, «было выпито только легкое вино, никакого коньяка, никаких особо крепких напитков, чтобы ему стало плохо». Рассказ Лозгачева отличается от рассказа Тукова тем, что, по словам Лозгачева, этот необычный приказ отдал не Сталин, а другой гвардеец, приставной Хрусталев, покинувший дачу в 10 часов утра 1 марта. Только тогда Хрусталева сменила вышеупомянутая охрана.
, Старостин, Туков и Лозгачев.
Утром перед тем, как покинуть их, Хрусталев сказал им: «Ну, ребята, вот такой приказ, которого мы еще никогда не отдавали. Хозяин сказал: «Идите спать все, мне ничего не нужно». Я иду спать сам. Ты мне сегодня не нужен». Для Радзинского здесь было больше, чем кажется на первый взгляд, и он проясняет ситуацию: «Если быть точным, [Лозгачев] слышал это не от Хозяина, а от привязанного Хрусталева, который прошел заказал и на следующее утро уехал с дачи».[5]
Радзинский включил следующий рассказ Лозгачева:0003
«На следующий день было воскресенье. В десять, как обычно, мы собрались на кухне, как раз собираясь планировать дела на день. В десять не было никакого движения, как мы говорили, когда он спал. А потом пробило одиннадцать — и по-прежнему никакого движения. В двенадцать — еще нет. Это было уже странно: обычно он вставал между 11 и 12, но иногда просыпался уже в 10. Вскоре час — по-прежнему никакого движения. Его телефоны, возможно, звонили, но когда он спал, они обычно переключались на другие комнаты.
«Мы со Старостиным сидели вместе, и Старостин сказал: «Что-то не так. Что нам делать?»
«И в самом деле, что нам было делать — войти к нему? Но он всегда говорил нам категорично: если «движения нет», мы не должны входить. Иначе нас строго накажут. Итак, мы сидели в своем домике (соединенном с его комнатами 25-метровым коридором), было уже шесть часов вечера, и мы понятия не имели, что делать. Вдруг охранник снаружи позвонил нам: «Я вижу свет в маленькой столовой». Ну, мы подумали, слава богу, все в порядке. Мы все были на своих постах, в полной боевой готовности, готовые к выходу, а потом опять… ничего. В восемь — ничего. Мы не знали, что делать. В девять — никакого движения. В десять — нет. Я говорю Старостину: «Иди, иди, ты начальник охраны, это твоя обязанность». Он говорит: «Боюсь». сыграй героя».[6]
«В этот момент была доставлена какая-то почта — посылка из ЦК. И обычно нашей обязанностью было передать почту. Мой, если быть точнее. — Тогда ладно, — сказал я. «Пожелайте мне удачи, мальчики».
Обычно мы заходили, пошумев, иногда даже нарочно хлопали дверью, чтобы он знал, что мы придем. Ему не нравилось, если ты входишь тихо. Вы должны были войти с уверенностью, уверенным в себе, но не стоять по стойке смирно. Или отчитывал: «Что это за солдатский Швейк?»
«Ну, я открыл дверь, громко пошел по коридору. Комната, куда мы положили документы, находилась рядом с маленькой столовой. Я вошел в эту комнату и заглянул через открытую дверь в маленькую столовую и увидел Хозяина, лежащего на полу с протянутой правой рукой… вот так [тут Лозгачев протянул свою полусогнутую руку]. Я замерз. Мои руки и ноги отказывались меня слушаться. Он еще не потерял сознание, но говорить не мог. У него был хороший слух, он явно слышал мои шаги и, казалось, пытался позвать меня на помощь. Я поспешил к нему и спросил: «Товарищ Сталин, что случилось?» Он обмочился и хотел что-то подтянуть левой рукой. Я ему говорю: «Мне вызвать врача?» Он издал какой-то бессвязный звук — типа «Дз…Дз…»[6]
«На полу лежали карманные часы и номер Правды .
И часы показывали, когда я посмотрел на них, половина седьмого. Значит, это случилось с ним в половине седьмого. На столе, помню, стояла бутылка минеральной воды Нарзан. Должно быть, он собирался получить его, когда зажегся свет. Пока я разговаривал с ним, а это было минуты две-три, вдруг он тихонько захрапел… Я слышал это тихое похрапывание, как будто он спал.
«Я снял трубку домашнего телефона. Я дрожал, и пот выступил у меня на лбу, и позвонил Старостину: «Приходи скорее в дом». Вошел Старостин и остановился как вкопанный. Босс потерял сознание. Я говорю: «Давайте положим его на диван, ему на полу неудобно». За Старостиным вошли Туков и Мотя Бутусова. Вместе мы посадили его на диван. Я сказал Старостину: «Иди, звони всем, я имею в виду всем». Он ушел звонить, а я не отошел от Мастера. Он лежал неподвижно, если не считать храпа. Старостин позвонил Игнатьеву в КГБ, но тот запаниковал и сказал Старостину судить Берию и Маленкова. Пока он звонил, у нас возникла идея — пересадить его на большой диван в большой столовой.
Там было больше воздуха. Вместе мы подняли его и уложили на диван, потом накрыли одеялом — он дрожал от холода. Бутусова закатала рукава.
«В этот момент Старостин дозвонился до Маленкова. Прошло около получаса, когда Маленков перезвонил нам и сказал: «Я не могу найти Берию». Прошло еще полчаса, позвонил Берия: «Никому не говорите о болезни товарища Сталина». В 3 часа ночи я услышал приближающуюся машину». внезапная болезнь, и он все это время лежал без медицинской помощи. Наконец Маленков и Берия прибыли без Хрущева.
Лозгачев продолжил свои воспоминания:
«У Маленкова скрипели ботинки. И я помню, как он их снял и сунул под мышку. Он вошел: «Что с Хозяином?» Он лежал, тихонько похрапывал… Берия ругался на меня и говорил: «Чего ты паникуешь? Босс крепко спит. Пошли, Маленков! Я ему все объяснил, как он лежал на полу и как мог только невнятно издавать звуки. Берия сказал мне: «Не паникуй и не мешай нам. И не беспокойте товарища Сталина». И они ушли.
«И снова я остался один.
Я подумал, что надо снова позвонить Старостину, чтобы он снова всех предупредил. Я сказал: «Если вы этого не сделаете, он умрет, и наши головы покатятся». Позвони им и скажи, чтобы пришли». Где-то после семи утра появился Хрущев. [Он появился впервые, — заметил Радзинский]. Хрущев спросил: «Как там Хозяин?» Я сказал: «Он очень беден, что-то не так», и рассказал ему всю историю. Хрущев сказал: «Врачи едут». Ну, подумал я, слава богу! Врачи прибыли между 8:30 и 9.00:00 утра». [5]
Прошло уже 13 часов, а Сталину не оказали никакой медицинской помощи. Радзинский предположил, что Лаврентий Берия опасался, что Сталин намеревался продолжить заговор не только против врачей-евреев, но и против некоторых членов его ближайшего окружения, особенно против самого Берии. Ему нужно было действовать, и он это сделал. Радзинский утверждал, что после того, как Николай Власик, верный и давний телохранитель Сталина, был арестован и замешан в сфабрикованном «деле врачей», а также в развернувшейся чистке МГБ, Берия в акте личного выживания завербовал Хрусталева, телохранителя, занимавшего стратегически важное место.
в нынешней личной привязанности Сталина. Как сообщается, по словам Молотова, позже Берия утверждал, что ближайшее окружение должно благодарить его словами: «Я его прикончил, — хвастался Берия Молотову, — я всех вас спас!»[3]
Лозгачев продолжает:
«Врачи все были напуганы до смерти… Они смотрели на него и тряслись. Они должны были осмотреть его, но их руки были слишком дрожащими. Что еще хуже, дантист вынул зубные протезы и случайно уронил их. Он был так напуган. Профессор Лукомский сказал: «Надо снять с него рубашку и измерить давление». Я сорвал с него рубашку, и ему начали измерять давление. Потом все его осматривали и спрашивали нас, кто был там, когда он потерял сознание. Мы подумали, что это все, конец. Они просто посадят нас в машину и до свидания. Но нет, слава богу, врачи пришли к выводу, что у него было кровотечение. Тогда было очень много людей, и, собственно, с этого момента мы не имели к этому никакого отношения. Я стоял в дверях. Люди — вновь прибывшие — столпились позади меня.
Помню, министр [МГБ] Игнатьев боялся войти. Я сказал: «Заходите, не стесняйтесь». В тот день, второго марта, привезли Светлану».[5]
Между 2 и 5 марта, когда умер Сталин, члены его ближайшего окружения делили трофеи власти. Берия уже прошел через кремлевское хранилище и изъял компрометирующие документы. Все приспешники вернулись на дачу и собрались там, чтобы отдать дань уважения, Берия, Маленков, Хрущев, а также опальная четверка, Молотов, Микоян, Ворошилов, Каганович и другие члены Президиума. Они восстанавливали свою уверенность, когда умирал величайший массовый убийца в истории.
Радзинский цитировал врача профессора Мясникова: «Сталин иногда охал. В какой-то момент, лишь на короткое мгновение, его сознательный взгляд как будто обвел лица у кровати. Тогда Ворошилов сказал: «Товарищ Сталин, мы здесь, все ваши верные друзья и соратники. Как ты себя чувствуешь, дорогой друг? Но глаза его были уже лишены всякого выражения. Весь день 5 марта мы занимались инъекциями и написанием пресс-релизов.
К умирающему подошли члены Политбюро. Нижние чины просто смотрели в дверь. Помню, Хрущев тоже был у дверей. Во всяком случае, приличия в иерархии соблюдались хорошо — Маленков и Берия шли первыми. Потом Ворошилов, Каганович, Булганин и Микоян. Молотов был нездоров, но приезжал два или три раза, ненадолго».
Сам Молотов вспоминал: «Мне велели выйти на дачу… Глаза Сталина были закрыты, и, когда он открывал их и пытался говорить, Берия прибегал и целовал ему руку. После похорон Берия смеялся: «Свет науки, ха-ха-ха!»[5]
По словам дочери Сталина Светланы, «смерть отца была медленной и тяжелой…. Его лицо стало темным и другим… черты его становились неузнаваемыми…. Агония смерти была ужасной. Он медленно душил его, пока мы смотрели… В последний момент он вдруг открыл глаза. Это был ужасный вид — то ли безумный, то ли сердитый и полный страха смерти… Вдруг он поднял левую руку и как бы то ли указал куда-то вверх, то ли погрозил нам всем пальцем… В следующее мгновение душа его, после последнего усилия, оторвалась от тела».
[]
Открыть в отдельном окне
Берия с дочерью Сталина Светланой, около 1930-х годов; примечание Сталин на заднем плане
Светлана также писала: «Берия первым выбежал в коридор, и в тишине зала, где все тихо стояли кругом, раздался его громкий голос, звенящий открытым торжеством: «Хрусталев, автомобиль!». Для Радзинского это еще одна часть головоломки: «В этом рассказе Светланы памятным является торжествующий голос Берии, обращенный к Хрусталеву! Из всех правопреемников он выбирал Хрусталева!»[1]
Наконец Радзинский спросил у Лозгачева, где находится охранная приставка:
«От всех избавились. Вызовут и отошлют из Москвы, «немедленно покиньте город и заберите с собой семью». Старостин, Орлов и Туков решили пойти к Берии. Попросить его не отсылать их. Итак, они вошли в его кабинет, и он сказал: «Если вы не хотите быть там, вы будете там внизу». И он указал на землю. Так они и ушли.
Радзинский спросил его: «А что сталось с Хрусталевым?» Лозгачев ответил: «Хрусталев заболел и вскоре умер… Орлову и Старостину дали работу во Владимире, а я остался на «базе» — фабрика пустовала, а я был начальником.
Его передали Министерству здравоохранения… На этом ближайшая дача кончилась».[5]
Когда утром 2 марта к Сталину прибыли врачи, Хозяин был весь в моче и лежал без сознания на диване. Его правая рука и нога были парализованы из-за правостороннего рефлекса Бабинского (т. е. правосторонней гемиплегии, соответствующей левостороннему мозговому инсульту). У него было давление 190/110 при пульсе 78. Врачи прописали абсолютный покой, и ему поставили восемь пиявок за уши для медленного кровопускания. Назначались холодные компрессы и гипертонические клизмы с сульфатом магния. Несмотря на лечение врачей, в 14:10 появилось дыхание Чейна-Стокса. а кровяное давление Сталина поднялось до 210/120. В течение следующих 2 дней состояние Сталина продолжало ухудшаться, и он оставался без сознания.
3 марта проблеск надежды появился, когда врачи заметили, что Сталин «с открытыми глазами отреагировал на выступление окруживших его товарищей». Но это было только мгновение. Сталин вскоре потерял сознание и так и не пришел в себя.
4 марта Сталин начал неудержимо икать и рвать кровью. 5 марта потливость стала обильной, пульс не прощупывался. Сталин не реагировал ни на кислород, ни на инъекции камфары и адреналина. Смерть Сталина была зафиксирована в 9: 50 вечера 5 марта 1953 г.[7]
Окончательный диагноз: «Возникшее 5 марта в связи с основным заболеванием — гипертонией и нарушением кровообращения в головном мозге — желудочное кровотечение способствовало повторному коллапсу, закончившемуся смертью». []
Открыть в отдельном окне
Тело Иосифа Сталина находится в гос. с другой информацией в заключительном отчете».[3]
Сообщалось, что Сталин пил разбавленное грузинское вино только в ночь перед своей болезнью 1 марта. Брент и Наумов подозревают в одном сценарии, что Берия при пособничестве Хрущева (чьи мемуары, Хрущев вспоминает , относящиеся к событиям сталинской последние дни оказались ненадежными),[5,6,8] подсыпали в вино варфарин, прозрачное кристаллическое вещество.
Варфарин — безвкусный химикат, который в 1950 году только что был запатентован и доступен в России как разжижитель крови для пациентов с сердечно-сосудистыми заболеваниями, а позже широко использовался в качестве крысиного яда. Гипертоническое кровотечение само по себе вызвало бы инсульт, как у Сталина, но оно не обязательно было бы связано с желудочно-кишечным или почечным кровотечением. С другой стороны, варфарин мог вызвать как геморрагический инсульт, так и нарушение свертываемости крови, поражающее несколько органов. Результаты вскрытия были бы очень важны, и, к счастью, они стали доступны совсем недавно.
«При вскрытии обнаружено обширное кровоизлияние в области подкорковых узлов левого полушария головного мозга. Это кровоизлияние разрушило важные участки головного мозга и вызвало необратимые нарушения дыхания и кровообращения. Помимо кровоизлияния в мозг, были установлены значительное увеличение левого желудочка сердца, многочисленные кровоизлияния в сердечную мышцу, слизистую оболочку желудка и кишечника, артериосклеротические изменения в сосудах, особенно сильно выраженные в артериях головного мозга.
. Эти процессы были следствием повышенного артериального давления.
«Данные вскрытия полностью подтверждают диагноз, поставленный профессорами и врачами, лечившими И. В. Сталина».
«Данные патологоанатомического исследования установили необратимый характер болезни И. В. Сталина с момента кровоизлияния в мозг. Соответственно, предпринятое энергичное лечение не могло привести к благоприятному результату или предотвратить фатальный конец».
«СССР. министр здравоохранения А. Ф. Третьяков; начальник Кремлевской врачебной канцелярии И. И. Куперин; академик Н. Н. Аничков, президент Медицинской академии; проф. М. А. Скворцов, действительный член Медицинской академии; проф. С.Р.»[2]
Очевидно, вышеперечисленные подписавшиеся в Минздраве включили в доклад столько, сколько можно было изложить в письменной форме с политической точки зрения, не залезая собственной головой в репрессивную советскую петлю! Они также правильно защищали врачей, которые лечили Сталина. Излишне говорить, что эпизод «Дело врачей» был очень свеж в их памяти.
[4]
Благоразумно ссылаясь на гипертонию как на виновника, хорошие врачи оставили после себя достаточно следов патологии в своем кратком отчете, чтобы потомки знали, что они выполняли свои профессиональные обязанности, как могли, не ставя под угрозу свою карьеру или свою жизнь с новыми хозяевами. в Кремле.
Высокое кровяное давление само по себе обычно приводит к гипертоническому кровоизлиянию в мозг и инсульту, но обычно не вызывает сопутствующей кровавой рвоты (рвоты кровью), как мы видим здесь в клиническом случае Сталина, и последующего геморрагического диатеза, поражающего сердечную мышцу, скудно, поскольку это подтверждается положительными результатами вскрытия.
Как я писал в другом месте, теперь у нас есть клинические и судебно-медицинские доказательства, подтверждающие давнее подозрение, что Сталин действительно был отравлен членами его собственного ближайшего окружения, скорее всего, Лаврентием Берией и, возможно, даже Хрущевым, все из которых опасались за их жизни.
[4] Но Сталину, жестокому советскому диктатору, поклонялись (и до сих пор поклоняются в некоторых кругах демократической России) как полубогу, и его убийство было бы неприемлемо для российского населения. Так что это держалось в секрете до сих пор.
Доступно БЕСПЛАТНО в открытом доступе по адресу: http://www.surgicalneurologyint.com/text.asp?2011/2/1/161/89876
1. Аллилуева С. Всего один год. В: Чавчавадзе П., переводчик. Нью-Йорк: Харпер и Роу; 1969. [Google Scholar]
2. Вскрытие тела И. В. СТАЛИНА. Полный текст. Правда. 1953, 7 марта;: 2. [Google Scholar]
3. Брент Дж., Наумов В.П. Нью-Йорк: Харпер Коллинз; 2003. Последнее преступление Сталина — Заговор против еврейских врачей, 1948-1953; стр. 312–22. [Академия Google]
4. Фариа М.А. Заговор еврейских врачей — Прерванный холокост в сталинской России! Рецензия на книгу Джонатана Брента и Владимира П. Наумова «Последнее преступление Сталина — заговор против врачей-евреев, 1948–1953». 2011. [Последнее цитирование: 10 сентября 2011 г.
.. »
