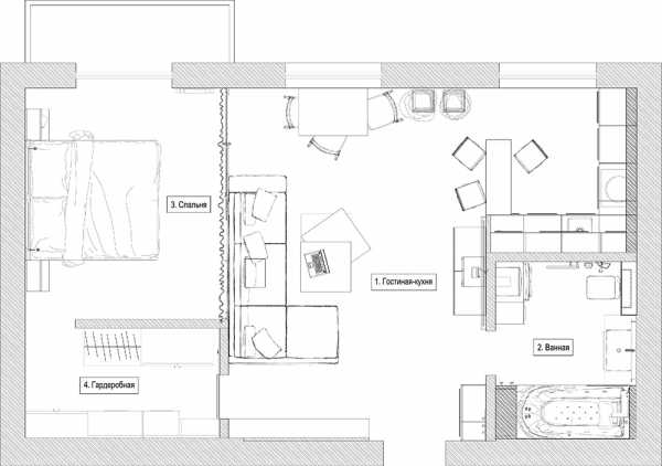
Перепланировка хрущевки 2 комнаты фото 43 квадрата – ремонт кухни и зала в квартире площадью 44 кв. м.
42 кв метра ремонта (фотоотчет о ремонте в “хрущевке”)
В этой теме – фотоистория ремонта в двухкомнатной квартире-“хрущевке”, можно оценить что было и что стало. Автор с ником Andruha 338. Далее – оригинальный текст автора.
Доброго дня!
Пока еще, как говорится, память свежа, хочу поделиться проведенным капитальным ремонтом с частичной перепланировкой 2-х комнатной хрущевки.
Уж не буду рассказывать, сколько раз мы задавали себе вопрос ….. после покупки-)))….”А зачем мы ее купили?”, “что с этим делать?” и “как тут жить?” ………столько нюансов повсплывало, которых изначально не видно было.
Итак, оригинал (ремонт был только при строительстве)


Копая просторы интернета с целью определить для себя вариант перепланировки, остановились на одном варианте, который кстати подглядели тут-)))

правда, потом отказались от этого варианта, уж больно рискованная затея спальни без окон и мизерной детской……….спальню убрали

Учитывая, что с таким действием, как перепланировка не сталкивались и многих тонкостей изначально не знали …… что можно делать при перепланировке, а что нельзя………. любая компания, в которую мы обращались за бабло узаконить желаемый вариант перепланировки в БТИ, отвечала отказом, после того, как мы сообщали что квартира в свао г.Москвы

который и воплотили в жизнь
и как говориться ПОНЕСЛАСЬ-)))
Было вывезено 5 контейнеров хлама, мусора старых стен, полов и т.д.
Максимально избавились от отделки несущих стен по пиреметру, а также стен сан-узла, все старая внутренняя инженерия ушла следом в контейнер.
Выполнение объема работ по возведению новых межкомнатных перегородок согласно плану


Все стены выравнены штукатуркой и выполнено штробление стен под кондиционирование комнат и электрику

Проводка питания розеток была заложена в полу, свет пущен по потолку….все проводка заведена в 36 модульный бокс.

Монтаж систем гвс, хвс и канаизации…… обустройство сантехнического шкафчика

По маякам залили пол во всей квартире, сделали паузу на полторы недели, чтоб пол схватился.
Далее, финишные штукатурные работы по всем стенам, обустройство потолка и гиспокартона (кухня-коридор потолок был опущен на 4см и зашит полностью листами, за которыми спрятана проводка), в комнатах по периметру сделаны короба и гипсакортона под точечные светильники и проводку

Укладываем плитку на пол кухни/ коридора, а также в ванной/туалете.

Между делом заказали кухню, после выравнивания стен и штукатурки.
Поклейка обоев, укладка ламината и монтаж натяжного потолка в комнатах, установка розеток и выключателей, монтаж дверей установка и подключение санфаянса в туалете.
КУХНЯ


ДЕТСКАЯ

зона для бабушек, где стоит диван как раз под кондиционером

ЗАЛ

КОРИДОР

САНУЗЕЛ

Стиральная машина висит на стене, не занимая места на полу. Максимальная загрузка – 3,5 кг.

uiut.boltai.com
Ремонт в хрущевке 42 кв.м идеальное решение. Фото

Изначально была приобретена типичная хрущевка со стандартной планировкой стен и перегородок. Присутствовали все атрибуты старых вторичек – деревянные полы и окна, выкрашенные стены на кухне и в санузле, советский котел и газовая колонка, а также множество других прелестей. Состояние, если не аварийное, то близкое к нему.

Решение о капитальном ремонте было принято практически молниеносно. Со всеми вытекающими последствиями – сносом перегородок, вскрытием пола, заменой межкомнатных дверей и окон, демонтажем покрытий и т.д. В итоге осталась только коробка. На ремонт я запланировал всего 4 месяца без закупки мебели и обустройства квартиры. Для того, чтобы понимать масштаб разрушений, вам просто стоит взглянуть на эти фото:


Сама жилая площадь обустраивалась для одного человека, поэтому при планировке и разработке дизайна я исходил исключительно из своих привычек и образа жизни. Для увеличения полезного пространство, было принято популярное нынче решение – объединить кухню и зал. Добавить отделение для гардероба, чтобы исключить необходимость покупки шкафов. А также увеличить пространство, отведенное под ванную комнату.
Расположение предметов интерьера было продумано заранее, поэтому структура перегородок была максимально продуманной и функциональной.

А это модель укладки плитки и расположение сантехники в ванной комнате, которую я, с некоторыми оговорками, воплотил в жизнь.

Ниже я предоставляю вашему вниманию результаты ремонта после половины выполненных работ. Это не окончательный вариант, дополнительная мебель и декоративные предметы интерьеры появятся позже. Сразу стоит оговориться, что я не делал ремонт в своей квартире исходя из беспрекословного соответствия дизайнерским тенденциям. Все до последней детали подобрано на мой вкус, а некоторые элементы не были запланированы изначально, и куплены импульсно.
Не судите строго, это мой первый ремонт и первая квартира (ни один профессиональный строитель или дизайнер участия в процессе не принимал). А с индивидуальным подбором деталей и ремонтными работами мне помогали друзья.
















Ну и в качестве дополнения – мелочи, большинство из которых выкрашены и отреставрированы собственноручно.





Мой мир
Вконтакте
Одноклассники
mediasole.ru
Перепланировка двухкомнатной квартиры: варианты и фото
Перепланировка хрущевки (2 комнаты, смежные варианты) на фото выглядит очень привлекательно. Связано данное обстоятельство с тем, что далеко не все современные квартиры имеют удачную планировку, позволяющую оформить помещение в соответствии с пожеланиями и вкусами владельца квартиры. При этом данная процедура является достаточно сложным видом ремонтно-строительных работ, требующим наличия специального разрешения на это.
В настоящее время ст. 25 Жилищного кодекса предусматривает выполнение, как операции перепланировки, так и операции переустройства. Переустройство не связано с изменением конфигурации квартиры. Так, например, в рамках такой процедуры вы можете перенести электропроводку внутри квартиры. Стены и перегородки здесь не деформируются и в технический паспорт никаких изменений не вносится.

Перепланировка хрущевки (2 комнаты, смежные варианты) на фото выглядит очень привлекательно
При проведении операции перепланировки, помещение изменяется существенно, например, демонтируются перегородки и стены (за исключением несущих).
Важно! Обязательно вносятся изменения в техпаспорт жилого помещения.
Естественно, что перепланировка – это более сложная операция, чем переустройство, и регулируется она большим количеством нормативно-технической документации. Без получения соответствующего разрешения на её проведение выполнять её нельзя.

Естественно, что перепланировка – это более сложная операция, чем переустройство, и регулируется она большим количеством нормативно-технической документации
Если говорить предметно, то в процессе перепланировки могут выполняться следующие операции:
- демонтаж и перенос перегородок;
- устройство и перенос проёмов дверей;
- укрупнение и разукрупнение многоквартирных домов;
- организация дополнительных помещений для кухонь и санузлов;
- расширение площади помещений за счёт соседних;
- ликвидация коридоров и тупиков.

Дизайн хрущёвки 2 комнаты без перепланировки на фото выглядит достаточно серо и уныло. Поэтому многие домовладельцы решаются на её перепланировку
При этом запрещены операции по перепланировке квартир:
- ведущие к нарушению прочности здания, разрушению его конструкций, порче его внешнего вида;
- не отвечающие правилам техники пожарной безопасности;
- ухудшающие условия проживания членов семьи домовладельца или его соседей;
- приводящие к переводу без специального разрешения жилого помещения в нежилое.
Дизайн хрущёвки 2 комнаты без перепланировки на фото выглядит достаточно серо и уныло. Поэтому многие домовладельцы решаются на её перепланировку. В этом случае необходимо заранее получить разрешение на производство подобных работ в органах государственного жилищного надзора. В противном случае домовладельца, решившего самовольно перепланировать принадлежащее ему помещение, может ожидать крупный штраф.

При проведении операции перепланировки, помещение изменяется существенно, например, демонтируются перегородки и стены (за исключением несущих)
Перепланировка хрущёвки 2 комнаты
В СССР был распространён такой тип жилья как «хрущёвка». Это дома серий 1-510, 1-511, 1-477, 1-515, которые строились из кирпича и блоков, в первую очередь в Москве и Подмосковье. В остальных регионах страны они также строились в большом количестве. Интерьер хрущевки 2 комнаты на фото без перепланировки выглядит весьма уныло, и поэтому такой тип жилья чаще всего подвергается перестройке. В результате появляется возможность значительно увеличить полезную площадь помещения и воплотить в жизнь самые смелые дизайнерские ходы.

В СССР был распространён такой тип жилья как «хрущёвка». Это дома серий 1-510, 1-511, 1-477, 1-515, которые строились из кирпича и блоков, в первую очередь в Москве и Подмосковье
Жильём подобного типа советские города массово застраивались в 60-х годах прошлого века по инициативе тогдашнего руководителя страны Никиты Хрущёва. Оно было малогабаритным из-за экономии и желания правительства страны как можно быстрее решить жилищную проблему. Так, например, для квартир данного типа были характерны потолки не выше 250 см, отсутствие лифта в домах, совмещённый санузел. Площадь помещений здесь была мизерной, что негативно сказывалось на условиях проживания, поэтому варианты перепланировки хрущевки с фото на 43 квадрата является очень востребованной информацией.

Жильём подобного типа советские города массово застраивались в 60-х годах прошлого века по инициативе тогдашнего руководителя страны Никиты Хрущёва
Обычно перепланировка хрущевки 2 комнаты на фото выглядит как объединение двух смежных комнат, ведь помещения здесь настолько узкие, что поперёк одной из комнат может с трудом стать даже одна кровать. Стоит отметить при этом, что помещения данного типа строились с применением относительно лёгких строительных материалов, поэтому если вы решите ремонт хрущёвки в 2 комнаты выполнить как на фото, перепланировка подобного рода вам не составит никакого труда.
Идея! Например, перегородки можно демонтировать при помощи обычной кувалды.
В результате такие смежные варианты перепланировки позволяют жильцам квартиры полностью удовлетворить свои потребности, несмотря на то обстоятельство, что квартира является малогабаритной. Что касается вариантов перепланировки, то двухкомнатные хрущёвки обычно оформляются как:
- квартира-офис;
- студия;
- совмещённые помещения (обычно совмещаются кухня и гостиная).

Из тех помещений, которые обычно попадают «под сокращение», можно назвать кладовую и санузел, очень часто объединяют кухню и прихожую.
Из тех помещений, которые обычно попадают «под сокращение», можно назвать кладовую и санузел, очень часто объединяют кухню и прихожую. Существуют и такие необычные варианты, когда кухня объединяется с балконом или лоджией. В результате её общая площадь увеличивается, а у домовладельца и членов его семьи появляется возможность обедать на «природе».
Перепланировка сталинки 2 комнаты
Такое жильё, как сталинки, или серии «сталинских» домов, строились в 30-60-х годах прошлого столетия. В связи с данным обстоятельством они считаются предшественниками хрущёвок и по площади обычно превышают 43 квадрата. При этом в отдельных случаях их строительство продолжалось вплоть до 1961 года.
По внешнему виду такие дома достаточно легко узнать, ведь они имеют коричневый или жёлтый цвет. При этом балконы здесь могут быть красными или облицованными гранитной крошкой. Сталинская архитектура предпочитает массивные балконы, эркеры и арки. В любом случае комнаты здесь обычно больше по площади, чем квартиры хрущевки с площадью 44 метра.

Такое жильё, как сталинки, или серии «сталинских» домов, строились в 30-60-х годах прошлого столетия
Несмотря на то обстоятельство, что очень часто такие здания возводились по индивидуальным проектам, им присущи некоторые общие черты:
- наличие холодильника, вынесенного на кухне под окно;
- высокие потолки и широкие окна;
- наличие раздельных комнат;
- наличие кладовой и комнаты для прислуги;
- использование для приготовления пищи газовых баллонов.

Дизайн без перепланировки «сталинской» квартиры обычно плохо вписывается в реалии жизни, поэтому и возникает необходимость выполнения перепланировки здесь
Дизайн без перепланировки «сталинской» квартиры обычно плохо вписывается в реалии жизни, поэтому и возникает необходимость выполнения перепланировки здесь. Обычно ремонт и перепланировки здесь происходят достаточно тяжело, ведь в отличие от хрущёвок, такие помещения имеют толстые стены, которые тяжело демонтировать даже при помощи перфоратора.
Совет! В связи с данным обстоятельством стоит избегать таких радикальных мер, ведь обычно площадь сталинки вполне позволяет не производить совмещения той или иной комнаты со смежной.
Если говорить о тех сериях, где для создания стен и внутренних перегородок использовалось дерево, их демонтаж может быть фактически невозможен, и это обстоятельство нужно будет уточнять отдельно до начала выполнения работ. Если всё-таки решение о сносе стен или перегородок будет вами приятно, стоит иметь в виду, что обычно объединению подлежат вспомогательные помещения, например, кладовая или комната горничной. Они имеют малую площадь и не слишком приятный внешний вид. Дизайн с перепланировкой таких помещений будет выглядеть хорошо только тогда, когда они будут объединены с более обширными помещениями.
Иногда встречается такой проект перепланировки, который предполагает наоборот возведение внутренних стен и перегородок, с тем, чтобы создать несколько изолированных помещений на месте зала. Дело в том, что для сталинской архитектуры было характерно создание помещений большой площади. Это хорошо для английского стиля дизайна интерьеров или классики, но абсолютно не подходит для таких распространённых на сегодняшний день стилей, как минимализм или хай-тек.

Иногда встречается такой проект перепланировки, который предполагает наоборот возведение внутренних стен и перегородок, с тем, чтобы создать несколько изолированных помещений на месте зала
Перепланировка брежневки 2 комнаты
Если вам понадобилась перепланировка «брежневки» с 2 комнатами, то смежные варианты на фото будут выглядеть предпочтительнее, чем хрущёвки. Дело в том, что дома этих серий начали строиться в СССР при Л.И. Брежневе, который принял решение, возвести для советских граждан более комфортабельное жилье, чем хрущёвки. Пик их строительства пришёлся на 1964 – 1980-е годы и, в отличие от предшествующих, при их строительстве не использовались блоки. Строились они в основном из панелей и кирпича.

Если вам понадобилась перепланировка «брежневки» с 2 комнатами, то смежные варианты на фото будут выглядеть предпочтительнее, чем хрущёвки
Насчитывается примерно 40 вариантов планировок данных квартир, поэтому «брежневки» очень часто подвергаются процедуре перепланировки, так как далеко не все из таких проектов были удачными. «Брежневки» имеют смежные варианты размещения санузла и ванной, водопровод и размещённый между этажами мусоропровод и лифт. Здесь очень часто одна из несущих стен примыкает к квартире соседей, при этом в панельных вариантах квартир очень плохая звукоизоляция.

Насчитывается примерно 40 вариантов планировок данных квартир, поэтому «брежневки» очень часто подвергаются процедуре перепланировки, так как далеко не все из таких проектов были удачными
Интерьер без перепланировки таких квартир весьма похож на современные, поэтому обычно никаких особо сложных работ здесь не производится. Так, например, очень часто устраивается санузел, что требует демонтажа панельной санкабины. В некоторых случаях кухня совмещается с гостиной. Делается это для создания интерьера в стилях классики или английском стиле.

В связи с тем, что стены и внутренние перегородки здесь панельные, их достаточно легко демонтировать. В том случае, когда вам попадется несущая стена, вы столкнётесь с целым рядом трудностей, так как для её демонтажа потребуется специальное разрешение, если он будет в принципе возможен
В связи с тем, что стены и внутренние перегородки здесь панельные, их достаточно легко демонтировать. В том случае, когда вам попадется несущая стена, вы столкнётесь с целым рядом трудностей, так как для её демонтажа потребуется специальное разрешение, если он будет в принципе возможен. Стоит также отметить, что дизайн «брежневки» без перепланировки в некоторых случаях подразумевает неудобное размещение кухни – между санузлом и наружной стеной. В этом случае часто встаёт вопрос переноса помещения кухни в иную комнату.

Интерьер без перепланировки таких квартир весьма похож на современные, поэтому обычно никаких особо сложных работ здесь не производится
Балконы и лоджии здесь, в отличие от хрущёвок, большие, поэтому очень часто на них обустраивают рабочие кабинеты, выносят туда часть кухни или оформляют комнату отдыха. Распространённой операцией является демонтаж встроенного шкафа за его ненадобностью. Обычно вместо него выполняют гардеробную. Встроенная мебель зачастую демонтируется и потому, что она позволяет значительно расширить, в случае необходимости, помещение гостиной. В результате может так случиться, что двухкомнатная квартира может стать однокомнатной или трёхкомнатная двухкомнатной.
Согласование документов для перепланировки
В любом случае прежде чем начать ремонтно-строительные работы на объекте, необходимо будет получить согласование на это. Дело в том, что подобная деятельность может привести к возникновению аварийной ситуации и даже к обрушению дома. За проведение самовольных работ предусмотрен крупный штраф. Даже в том случае, когда вы купите квартиру с уже выполненной перепланировкой, вам придётся такой штраф выплачивать.

В любом случае прежде чем начать ремонтно-строительные работы на объекте, необходимо будет получить согласование на это
Если говорить непосредственно о процедуре согласования перепланировки, то необходимый пакет документов можно собрать самостоятельно, а можно привлечь для этого дела специалиста из агентства недвижимости или архитектурного бюро. Так, в первую очередь, вам придётся обратиться в местный ЖЭК или управляющую компанию и получить там выписку из домовой книги и лицевого счёта. Далее придётся обращаться в БТИ за изготовлением технического паспорта.
После этого нужно будет заказать проект перепланировки в архитектурном бюро или строительной компании. Такой проект утверждается в местном Управлении архитектуры. Он обязательно согласовывается с пожарной службой, Роспотребнадзором, жилищным надзором и т.д. Потребуется и согласие управляющей компании, а также всех проживающих в квартире членов семьи. При этом если у вас сталинка или хрущёвка, относящаяся к объектам культурного наследия, нужно будет получить согласие ещё и в органе, ответственном за охрану памятников культуры.

В среднем весь процесс согласования занимает около 2 месяцев
В среднем весь процесс согласования занимает около 2 месяцев. В это время работы производить запрещается под угрозой наложения штрафа. Начать выполнять перепланировку можно только в том случае, когда у вас на руках будет полный пакет разрешительной документации. Именно она даст вам возможность оформить дизайн интерьера вашего помещения в соответствии с вашими пожеланиями и вкусом.

Начать выполнять перепланировку можно только в том случае, когда у вас на руках будет полный пакет разрешительной документации
Если у вас нет времени на хождение по инстанциям, можно поручить это сделать агенту. Он соберёт все необходимые документы, и вы получите их уже в готовом виде без посещения тех или иных контролирующих органов. При этом стоит отметить, что вам придётся потратиться на заработную плату такого агента и оформление на него доверенности от вашего имени.
comfortoria.ru