Перепланировка в панельной хрущевке: типовые варианты проектов 1-2-4-комнатной квартиры, идеи ремонта
типовые варианты проектов 1-2-4-комнатной квартиры, идеи ремонта
За вторую треть XX века десятки миллионов людей переехали из сельских изб и единичных комнат в общежитиях и коммунальных квартирах в отдельное жилье. Тогда это был грандиозный прорыв, но уровень требований за последние десятилетия резко возрос. И комфортная жизнь уже далеко не исчерпывается центральным отоплением, холодной и горячей водой, газоснабжением. Квартиры- «хрущевки», построенные в 1950-х-1960-х годах отличаются не слишком совершенной планировкой, по большей части, но исправить эту проблему при должном старании не составит труда.
Особенности зданий
Панельные пятиэтажки вовсе не были оригинальным изобретением, в них соединились тенденции, разработанные в Германии (компактные дома) и США (блочное домостроение).
Газобетон, керамзитобетон, несмотря на свою неплохую прочность, не обеспечивают приличного уровня звукоизоляции и слабо держат тепло. Кирпичные пятиэтажные здания способны прослужить 90-100 лет, однако, это достижимо только при условии качественного, своевременного капитального ремонта и технического обслуживания.
Улучшенная планировка – это наличие балконов, и другие усовершенствования, введенные в проекты хрущевского периода начиная с середины 1960-х годов и позднее (до прекращения такого строительства совсем в 1985 году).Целесообразно в подобных однокомнатных квартирах добиваться максимальной симметричности освещения. Установка мягкой мебели способна значительно повысить уровень повседневного комфорта.
Разделяющие смежные комнаты стены (перегородки) не отличаются особою прочностью. Потому использовать их для подвешивания тяжелых предметов и даже загруженных полок невозможно. Зато снос при выполнении перепланировки значительно упрощается и ускоряется.
Описание квартир
Двухкомнатная квартира в типовых проектах раннего периода встречается намного чаще, чем однокомнатная. Тем не менее круг проблем одинаков: площадь мала, комнаты расположены как попало, есть проходные помещения. Если в квартире предусмотрено две комнаты, ее площадь колеблется от 41 до 46 квадратных метров, а однокомнатные делались размером 30-31 м2. Независимо от площадей, выделялась кладовая либо встраиваемый шкаф и шкаф-холодильник (углубление под кухонным подоконником).Все квартиры хрущевских серий 1-2-3-4-х комнатные, площадь комнат может различаться очень значительно.
Четырехкомнатная «хрущевка» имеет размер от 62 до 72 кв. м, в этом варианте, наконец, появилась изоляция всех помещений друг от друга. Неудивительно, что дизайнеры и энтузиасты перепланировок высоко ценят это свойство. Почти всегда нет необходимости в радикальных изменениях внутреннего пространства, можно обойтись незначительными корректировками.
Гораздо чаще, впрочем, встречаются квартиры хрущевских серий площадью 30, 43 или 45 кв.
м. Особенностью, характерной для жилья какой угодно площади, является выход окон всех квартир, за исключением угловых, в одну сторону. Именно так выглядят все дома серии 1-335, активно строившейся с 1963 по 1967 годы.Важный момент: при перепланировке в идеале должны решаться не только эстетические проблемы, но и проблемы с использованной инфраструктурой. Независимо от серии, года постройки и нюансов распределения помещений, электропроводка и другие коммуникации морально устарели и не соответствуют требованиям нынешних потребителей. Подключать энергоемкую бытовую технику становится очень опасно.
Согласование перепланировки
Следует заметить, что законодательство, регулирующее перепланировку жилья и иных помещений, было придумано не просто так.
Малейшее изменение даже второстепенных стен, не говоря уже о несущих, способно привести к ужасным последствиям.
Пусть вы точно знаете, что какая-то стена или перегородка не нагружена, но все равно, ради общего спокойствия и уверенности, ради исключения конфликтов и претензий со стороны соседей, лучше составить и согласовать проект.
Ни одна несущая стена не может быть затронута при перепланировке даже в самой малой степени. Обнаружив ничтожное изменение ее, контролирующие органы с полным основанием наложат штраф или применят иные санкции. Важно учесть и иные тонкости, менее очевидные. Например:
- Запрещается действующими правилами расширять ванные, кухни и туалеты за счет жилых комнат (можно отнимать пространство только у технических помещений).

- Недопустимо расширение кухонь за счет санузлов.
- Если все-таки раньше кухню расширили, использовав жилую площадь, на ней не допускается установка сантехнических приспособлений и газовых плит.
- Кухни, оборудованные газовыми плитами, запрещено совмещать с жилыми комнатами (если нет промежуточных дверей).
Если вы хотите не снести несущую стену, а только лишь сделать в ней проем ограниченной величины, это допускается правилами. Но потребуется обосновать необходимость в таком решении, невозможность иного выхода из ситуации и безопасность планируемого отверстия. Обязательным условием разрешения на такую работу окажется инженерное обследование стены как в вашей квартире, так и на смежных этажах. Категорически запрещаются любые работы, которые усложнят доступ к общедомовым коммуникациям и устройствам, ими управляющим.
В последнем случае речь идет и о вашей безопасности тоже: представьте себе, что будет, если замуруют «страшную и портящую вид» газовую трубу, а затем возникнет утечка и скопление газа в замкнутой полости.
Или же вода начнет сочиться внутри, размывая понемногу материалы, пока не разрушит основательную часть стены.
Ни одна перепланировка, даже считающаяся безопасной и допустимой, не согласуется в домах, стоящих в очереди на снос. Объединять балконы с жилыми комнатами и кухнями можно лишь там, где проекты позволяют монтировать раздвигающиеся перегородки. Нельзя подсоединять теплый пол к общим трубам горячей воды и отопления, поскольку это создает не предусмотренную изначально нагрузку и может вовсе нарушить баланс этих важных систем. Под запрет попадает также перекрытие вентиляции или перенос ее траектории.
Идеи для ремонта
Однокомнатную квартиру «хрущевского» формата можно преобразовать в студию, это отличный молодежный вариант. Суть – упразднение перегородок, которые мешают проходу напрямую из жилой комнаты в кухню и в коридор. Важно учесть, что санитарный узел не трогают, его перемещение возможно только на первом этаже.Другой способ решить проблему недостатка места – это слияние кухонь с коридорами, при котором двери, ведущие в комнату, отодвигаются от входа в жилище. Второй вариант позволяет устанавливать в прихожих встроенные шкафы. Еще неплохо подумать об утеплении балкона или лоджии, о проведении туда отопления, но подобное решение должны воплощать квалифицированные профессионалы, не пытайтесь действовать самостоятельно!
Однокомнатные «хрущевки» в кирпичных домах с очень маленькими санитарными узлами и кухнями при стандартном расположении перегородок улучшаются путем отказа от ванн. Вместо них, устанавливают душевые кабины, что поможет оптимальнее использовать площадь санузла.
Одна стена оказывается немного скошена, кухня чуть-чуть расширяется, а прихожая, напротив, сокращается.
Утепляя балкон, вы сможете переместить на него шкаф и рабочий стол, разместить там даже кабинет. Такой вид перепланировки уместен для семьи из троих детей и двоих взрослых. А вот квартиры формата «студия» не слишком нравятся большинству людей, при наличии детей от подобного решения лучше отказаться.
Еще один способ переоформления состоит в том, что переносятся перегородки. Когда боковина прихожей сдвинута в сторону комнаты, а лицевая стена ее придвинута почти к самой двери санузла, можно расширить коридор, поставить в нем встраиваемый шкаф или даже гардеробную. Дефицит площади в комнате возмещается изъятием части пространства кухни, но все же передвижение стены к двери в ванную позволяет поставить холодильник.
Столовая доля кухонь сдвигается в комнату, а сделать территорию гармоничнее поможет установка раздвижных дверей либо входного блока вида «гармошка».
Однокомнатная «хрущевка» может быть преобразована в студию с обособленным спальным местом, где размещают кровать и небольшой шкаф. Пусть мебели там немного, но одно из самых важных мест оказывается изолированным.
Привлекательно решение с созданием «квартиры-офиса», в котором крупная жилая комната сливается воедино с кухней и коридором. Все это пространство становится местом приема пищи и повседневного отдыха. Маленькая комната становится шире на 15 сантиметров, потому что передвинута перегородка, это помещение отводят под спальню и гардероб. Но обычным сдвигом перегородок не ограничиваются, формируют рабочий кабинет, между ним и гостиной встает прозрачная стена.
В зависимости от вашего усмотрения, раздвижные двери могут интегрировать кабинет визуально в общее пространство или же обособить его; ванну в санузле сменяет душевая и стиральная машина. Еще туда вводят удлиненную столешницу, дополненную ящиками.
Дизайн интерьера гостиной
Чтобы гости, которых вы впервые (да и потом) примете в перепланированной «хрущевке», сразу поняли суть дизайнерской идеи, нужно грамотно оформить гостиную. Оптимально, по мнению специалистов, подходят для интерьера этой комнаты светлые тона, они помогут справиться хотя бы визуально с недостатком пространства. А вот то, какой именно вид светлого материала на стены выбрать, решаете вы и только вы!
Широко распространено использование:
- обоев под покраску;
- обоев виниловых;
- шелкографии;
- стеклообоев;
- покрытых орнаментом блоков и конструкций.

Дополнительное поднятие потолка обеспечат источники света, смотрящие вверх. Чтобы свет не показывал одно только однообразное пространство, имеет смысл использовать прямоугольные картины, оригинальные шторы и занавески. Высокие вазоны и металлические подставки для цветов добавят в интерьер изящества и элегантности, сделают комнату живее.
По мнению специалистов, гостиные в «хрущевках» следует оформлять в духе классики либо минимализма. Все прочие решения если и уместны, то только в отдельных случаях и в рамках авторского дизайна высокого класса. Самостоятельно спроектировать и реализовать хорошую обстановку очень тяжело. Минималистичный интерьер привлекателен тем, что используется только ограниченное количество мебели, по большей части модульного типа, отделка формируется из однородных материалов сдержанной окраски.
Яркие аксессуары если и можно встретить, то только, как выразительный акцент, а не доминанту.
Классическая гостиная часто создается, когда с этим помещением объединяют кухню. Целесообразно проемы окон и дверей превратить в арочные или, по крайней мере, имитировать их. Классика отлично сочетается с зеркалами, репродукциями картин знаменитых художников, статуэтками. Допустимо использовать один или два предмета, украшенных ковкой, но основательно думайте, не будут ли они чрезмерно тяжеловесны в данном помещении.
1, 2-х и 3-х комнатной
Каждому человеку хочется окружить себя красивым, комфортным интерьером, который подходит именно для него. Чтобы домой хотелось возвращаться, в нем должно быть уютно и удобно. Однако наши желания не всегда совпадают с нашими возможностями. В последние годы появилась мода на так называемые открытые пространства. Хотя тенденция на студии была продиктована необходимостью в бюджетном жилье, совмещенные комнаты стали своеобразной изюминкой стильных квартир.
Ряд направлений в дизайне (скандинавский, лофт, минимализм) разом подхватили эти идеи и вот уже на каждом шагу встречаются сотни вариантов зонирования совмещенных пространств. Однако, не каждому посчастливилось стать обладателем жилья в новостройке, где почти каждая квартира имеет индивидуальную планировку и легко подобрать вариант для себя. Панельные и кирпичные пятиэтажки хрущевской застройки имеют неказистый вид не только снаружи. Типовые квартиры в таких домах похожи друг на друга, как близнецы. Что может быть хуже в то время, когда индивидуальность и авторский дизайн ценятся превыше всего? Остается только реорганизация пространства своими руками в рамках изменений, допустимых законом для собственников квартир. Поговорим об особенностях перепланировки хрущевок и рассмотрим ряд уже готовых решений.
Что можно и нельзя при перепланировке?
Большую часть ремонтных работ придется согласовывать с жилищной инспекцией. К перечню преобразований, которые нельзя проводить самостоятельно, относят:
- Внешние работы на фасаде, которые могут повлиять на архитектурный облик всего дома.
Особенно это правило касается тех квартир, которые располагаются в зданиях, имеющих историческую ценность. Установка внешних блоков сплит-систем (кондиционеров) является исключением из этого правила. - Любые варианты реорганизации пола. К примеру, проведение так называемого теплого пола.
- Перенос или создание новых ванных, туалетов.
- Любые работы с газовым оборудованием, которые предполагают проведение дополнительных коммуникационных систем. При этом плиту на кухне перемещать разрешается.
- Демонтаж, частичный снос, создание новых дверей на несущих стенах.
Также стоит быть готовым к тому, что никогда не будут одобрены следующие варианты реорганизации квартиры в хрущевке: - Обустройство веранд или балконов в квартирах, которые располагаются на втором этаже и выше.
- Установка регуляторов или личных «включателей» на инженерных сетях, которые считаются общедомовыми.
- Перенос отопительного оборудования за пределы квартиры на балкон или лоджию.

- Объединение кухни с другими комнатами в студию, если имеется газовая плита. Согласно нормам, в тех квартирах, где проведен газ, обязательно наличие межкомнатных дверей. Плотно закрытая комната может спасти жизнь жильцам во время утечки.
Также нельзя проводить ремонт в жилье, которое официально считается аварийным. Хотя здесь вообще стоит задуматься о целесообразности подобных действий. Любые работы, которые могут ослабить конструкцию дома или ухудшить жилищные условия владельцев квартиры или их соседей, не будут одобрены. Однако, не все так плохо. Есть ряд ремонтных работ, для которых согласование не требуется вообще:
- Проведение косметического ремонта.
- Смена инженерного оборудования (даже указанного в техпаспорте) на аналогичное новое.
- Разборка встроенной мебели, наличие которой не указано в техническом паспорте квартиры.
- Замена отделочных материалов.
- Перемещение газовых и отопительных приборов, если это не требует прокладки новых коммуникаций.

- Отделка балконов и лоджий.
Также существует перечень работ, которые можно совершить без согласования, но с уведомлением (даже постфактум) соответствующих инстанций:
- Остекление балконов и лоджий.
- Перемещение оборудования в пределах кухни или санузла, но без изменения габаритов этих комнат.
- Ликвидация дверных проемов в несущих стенах.
- Установка перегородок, если они не дают дополнительную нагрузку на перекрытия.
- Изменение конфигурации тамбуров или их ликвидация.
- Обустройство новых проемов в ненесущих стенах.
- Снос или частичная разборка ненесущих стен.
В двух последних случаях правило не относится к межквартирным стенам.
Где согласовывать перепланировку?
Перепланировка должна осуществляться по закону. Если владелец самостоятельно проведет ремонт с рядом серьезных изменений без уведомления соответствующих органов, он становится нарушителем. Важно понимать, что демонтаж или изменение в несущих стенах, снижает прочность конструкции всего дома, что может повлечь за собой его разрушение.
Для начала нужно подготовить проект перепланировки и собрать пакет необходимых документов. План будущих изменений заказывают в конструкторских бюро. В пакет документов входят:
- Заявление.
- Проект перепланировки.
- Документы, доказывающие право владения квартирой («зеленка»). Они не требуются, если данные присутствуют в Росреестре.
- Техпаспорт квартиры (можно получить в БТИ). Для жителей Москвы этот документ необязателен, так как он хранится в местной жилищной инспекции в электронном виде.
Если жильцы имеют на руках договор социального найма, а квартира не находится в личной собственности, то необходимо согласие всех членов семьи на перепланирование. Для тех, кто проживает в домах, признанных памятниками архитектуры, потребуется еще письменное согласие органов, которые занимаются сохранением и охраной таких зданий. Пакет документов передают в жилищную инспекцию. Решение инспекция выносит в течение 45 дней. Дополнительно к этому сроку добавляют еще 3-5 рабочих дней, пока документ поступит в МФЦ, так как многие обращаются именно в такие центры.
Эта организация тоже занимается приемом документов такого рода и передает их в инспекцию. Если заявитель получает отказ, то решение обязательно подкрепляется обоснованием. Его можно оспорить через суд. Если получено разрешение, то владелец квартиры своими силами проводит ремонт и приглашает комиссию для подписания акта о перепланировке. Проводятся новые замеры квартиры, а изменения будут внесены в ее техпаспорт.
Во многих хрущевках и брежневках разрешают ряд проектов по перепланировке, но в ограниченных количествах. То есть, если сосед сверху решил реорганизовать свою квартиру и ему дали на это разрешение, то шансы на то, что согласие на аналогичные изменения в вашей квартире будет получено, снижаются. Однотипные перепланировки ослабляют конструкцию. Поэтому здесь важно быть первым.
Перепланировка однокомнатной хрущевки
Существует несколько вариантов переделки однушек в хрущевках. Как правило, типовые квартиры имеют крошечную прихожую, от которой ведет коридор с дверями на кухню, к санузлу и в большую комнату, выполняющую функции спальни и зала.
В таких квартирах очень тесно. Жизнь молодой семьи с ребенком и вовсе превращается в суровое испытание. В первом случае стену, разделяющую кухню и комнату демонтируют. Получается небольшая студия. Теперь их прихожая ведет к двум дверям: в санузел и к совмещенным комнатам. Так как в небольших квартирках каждый метр на счету, сэкономить на громоздкой мебели можно, организовав гардеробную в бывшей гостиной-спальне, рядом с прихожей через стену. В другом варианте стену между кухней и гостиной тоже убирают, однако прихожая присоединяется к совмещенному пространству, а не отделяется дверьми. Получается своеобразный коридорчик сложной формы. Для спального места выделяют крошечную комнатку. Вариант воплощается только в угловых квартирах. В таком жилье имеется дополнительное окно, которые обеспечит спальню естественным освещением.
Переделка двухкомнатной хрущевки
Типовые планировки квартир в хрущевках, которые даже получили свои индивидуальные «народные» названия, в большинстве случаев считаются устаревшими и неудобными. В сравнении с многообразием вариантов расположения комнат в новостройках, они действительно сильно проигрывают. Однако, такое жилье по статистике считается самым продаваемым из-за своей низкой стоимости. Поэтому и спрос на проекты перепланировки для устаревших квартир не снижается.
Книжка
Хрущевка «книжка» получила свое название из-за внешнего сходства планировки квартиры с раскрытым фолиантом. Помещения в двухкомнатном жилье располагаются в линию и соединяются между собой дверями. Одна комната становится проходной. Обычно ее используют в качестве зала. По бокам размещается спальня и кухня с санузлом и прихожей. Как правило, к таким квартирам прилагается балкон или лоджия (обычно размещенные в зале). Такой тип планировки считается наиболее неудачным. Переделать что-либо в «книжке» весьма проблематично. Единственное, на что могут рассчитывать хозяева, так это частичный снос стен между залом и прихожей. В увеличившийся коридор выводят двери в гостиную и спальню, оставляя сообщение с кухней нетронутым.
Ранее существовавшие входы из зала убирают. Таким образом избавляются от проходного помещения и изолируют каждую комнату, но при этом жертвуют небольшой площадью зала. Также встречает и другой, более трудоемкий вариант. Между кухней и гостиной сносят стену, объединяя два пространства в студию.При этом площадь зала уменьшают, как и в предыдущем варианте. В этом небольшом тупичке удобно обустроить кладовку или гардеробную.
Трамвай
Хрущевка «трамвайчик» (как ласково в народе называют этот тип квартир) имеет угловое расположение с торца здания. Небольшая прихожая ведет к кухне, санузлу и одной из комнат двушки, которая, в свою очередь, является проходной и сообщается со вторым помещением. Дизайнеры предлагают не проводить в «трамваях» серьезных изменений. Кухню и санузел не затрагивают вообще, а вот от проходной комнаты избавляются. Ее метраж незначительно уменьшится, зато появится два изолированных помещения. Изменения осуществляют за счет увеличения площади прихожей.
Ее просто продлевают до упора и делают два выхода к комнатам. Получается длинный коридор, в котором легко обустроить кладовку или гардеробную, тем самым разгрузив комнаты. Новая планировка отдаленно напоминает двухкомнатную «бабочку» с той лишь разницей, что посередине не кухня. Разделить ли коридор перегородкой на две секции (прихожая+ проходная зона с дверями), решают уже сами владельцы.
Ремонт в панельной пятиэтажке-хрущевке: советы и особенности — Наш уютный дом
В конце 50-х и вплоть до 80-х по всей территории Советского Союза было построено множество домов, которые в народе назывались «хрушевками».
Это 5-6-ти этажные здания без лифтов и мусоропроводов, которые строились преимущественно из железобетонных плит, реже из кирпича. Их отличительной особенностью является предельно маленькие размеры как комнат, так и кухни с санузлом.
Все, кто живет в хрущевках, ясно представляют себе сложности, связанные с обустройством уютного жилья в таких габаритах.
Провести же ремонт в хрущевке своими руками нередко становится весьма трудоемким и сложным процессом. Для того чтобы результатом ремонта была удобная и полноценная квартира, следует учитывать особенности данных строений и понимать, что имеется целый ряд ограничений и оговорок в плане выбора и материалов для отделки, и способов реализации своих дизайнерских решений.
Особенности строения хрущевок, их виды
Прежде чем переходить к советам по ремонту в хрущевках, необходимо озвучить особенности строений, которые подпадают под данное название. Ведь общего у них собственно только маленькие габариты, часто объединенный санузел и невысокие потолки, а вот в плане конструкции различия довольно существенные, что следует учитывать при планировании ремонта, как капитального, так и легкого декоративного. Объединяет их также период строительства – 60-80 года прошлого века. В то время была разработана и внедрена в массовое строительство целая группа проектов. Среди них:
- Панельные дома из железобетонных панелей с несущими продольными внешними стенами;
- Дома с внешними кирпичными стенами, внутренним каркасом из ж/б колон;
- Панельные дома из железобетона с несущими продольными и поперечными стенами.

Типичное здание своей эпохи в Москве
Основной конструктивной особенностью является наличие внутри конструкции несущих колон и ригелей, на которые опираются плиты перекрытия. Во всех типах домов перекрытия выполнялись с использованием 220 мм железобетонных плит с пустотами.
Внутренние перегородки могут существенно различаться по материалу. Так, в панельных домах чаще всего использовались тонкие, всего в 40 мм толщиной, стены, выполненные из пенобетона и гипсобетона. Другим вариантом исполнения были деревянные перегородки, которые обшивались дранкой и оштукатуривались.
Компоновка квартир предполагает наличие проходных комнат малого размера, объединенный санузел и малогабаритную кухню, которая в лучшем случае могла иметь площадь до 7 м2.
Вентиляция организована централизованно с выводом воздуховодов в кухню и санузел. В панельных вариантах на оконных проемах отсутствуют подоконники.
Теплоизоляция внешних стен в большинстве случаев недостаточная.
Особенно это заметно для центральных и северных районов страны.
Видео: обзор-пример ремонта в хрущевке
Капитальный ремонт в хрущевке
Основным задачами капитального ремонта должны стать следующие моменты:
- Обеспечение достаточной теплоизоляции;
- Замена остекления;
- Планировка кухни и санузла с возможным расширением;
- Сравнивание уровня полов во всей квартире;
- Отделка стен и потолков во всей квартире;
- При необходимости — перепланировка комнат.
Рассмотрим поочередно все эти пункты и обозначим ключевые моменты, связанные с особенностью строения домов-хрущевок.
Теплоизоляция в хрущевках
По требованиям ГОСТов утепление стен следует проводить только с внешней стороны. Это особенно важно для хрущевок, ведь если утеплиться изнутри, то и железобетонные блоки и кирпичные внешние стены начнут быстро приходить в негодность, от чего ситуация только ухудшится. Все это связано с размещением точки росы в стенах при перепадах температуры. Те особые моменты, когда допустимо внутреннее утепление, неприменимы для такого типа домов.
Внешняя теплоизоляция хотя и спасает от холода, зачастую портит и так неприглядный фасад, поэтому вопрос о наружном утеплении в едином стиле лучше решать всем домом.
С внешней стороны можно воспользоваться любым доступным методом. Чаще всего это обшивка пенополистиролом. В некоторых случаях, если речь идет о первых этажах, то можно сформировать обрешетку и утепление минеральной ватой. В последнее десятилетие просматривается активность государственных коммунальных организаций, которые планомерно проводят капитальные ремонты зданий построенных в 60-80-х годах и полноценное утепление всего здания именно с помощью обрешетки и минеральной ваты. Так что следует уточнить в своем ЖКХ о планах реставрации и капитального ремонта вашего дома.
Замена остекления в хрущевке
Основной сложностью остекления хрущевок является отсутствие в большинстве домов подоконников как таковых и малая толщина внешних стен.
Особое внимание следует уделить замерам оконного проема перед заказом окон. Вместе с тем сразу же обдумайте размеры подоконников и откосов.
Часто оконный проем, из которого выставили старое деревянное остекление, представляет собой неровный прямоугольник. Так что замеры должно усреднить по меньшему из размеров. Хорошим моментом является отсутствие толстого слоя задержки между оконной коробкой и краями оконного проема, так что нет необходимости при замерах долбить стены в поисках края основы.
Большинство российских компаний «со стажем» имеют огромный опыт остекления хрущевок и типовые решения для серийных домов. Поэтому при грамотном выборе подрядчика проблем возникнуть не должно.
Сделать широкие подоконники не выйдет. Точнее это нецелесообразно. В результате получится слишком маленькая площадь опоры подоконника на оконный проем, и при увеличении его ширины будет страдать прочность всей конструкции. Кроме того ухудшится циркуляция теплого воздуха возле окна, что может негативно повлиять на новые пластиковые окна.
Особое внимание необходимо уделить вопросу утепления окна по всему периметру и под подоконником с помощью монтажной пены. Старые штукатурные откосы лучше всего полностью демонтировать. Новый подоконник дополнительно укрепить путем укладки его на подушку раствора.
Планировка и ремонт в кухне и санузле хрущевки
Кухня
Основная проблема во время ремонта кухни в хрущевке — это планировка и выбор материалов для ее отделки. Все упирается в размеры помещения. Кроме этого полы в кухне и санузле отличаются в большей части квартир-хрущевок по уровню от остальной квартиры. В довершение стены, выполненные из гипсобетона или пенобетона, а также внешние железобетонные, не отличаются прямотой.
Для того чтобы несколько расширить помещение можно переместить внутренние перегородки квартиры. При этом займется место у коридора или соседней комнаты. Несущими являются внешние стены и система колон и ригелей, так что внутренние перегородки можно сносить и перемещать. Однако следует в обязательном порядке оформить все изменения и получить все необходимые разрешения. Лучше перестраховаться и пригласить проектировщика, который точно определит: можно ли сносить необходимую перегородку. Возвести новую стену кухни лучше из влагостойкого гипсокартона.
Один из самых популярных вариантов «спасения» кухни в хрущевке — её объединение с комнатой, благо неопорные стены допускают их снос. А из перегородки из гипсокартона можно сделать дополнительное место для хранения. Главное — фантазия и наличие «лишней» комнаты в квартире.
Второй момент в кухне — это коммуникации. Газовые трубы, ввод воды и канализация расположены в самых невыгодных местах и чаще всего отстоят от стен на 5-7 см. Внешний вид коммуникаций также оставляет желать лучшего. Что касается газовых труб, то в этом могут помочь только газовые службы, которые могут перенести трубы в самый угол и сделать ввод более цивилизованным.
Трубы подачи воды и канализацию лучше заменить на пластиковые, и проложить максимально близко к полу.
Лишь в некоторых домах можно позволить себе спрятать трубы в стену, тем самым облегчив процесс установки кухонной стенки.
Для отделки стен подойдут такие материалы, как:
- Кафельная плитка;
- Покраска;
- Обои.
На границе между потолком и стенами нежелательно формировать лепнину или декоративные плинтуса. Это только уменьшит визуально и без того крохотную кухню.
Отличным решением для кухни в хрущевке является столешница-подоконник и шкафы вдоль окна.
Не пытайтесь «впихнуть» в небольшое помещение огромный стол — не ленитесь и поищите оригинальные решения в мебельных магазинах.
Незаменимым решением может стать складная мебель. Если у Вас большая семья, а места мало — можно повесить не один, а парочку откидных столов.
И конечно, в маленькой кухне для хранения нужно максимально использовать стены, может тогда в ней останется хоть немного свободного места.
Этому лучше всего поучиться у скандинавских дизайнеров.
Ванная
Обязательно следует сопровождать ремонт ванной в хрущевке заменой гидроизоляции. Сливы и выводы канализации лучше заменить на пластик. При этом не стоит экономить. Следует связаться с соседями по стояку и выполнить работы по стояку централизованно. Если этот вариант не получается, то заменять трубы с выводом переходов пластик-металл аж к соседям. Этим можно обезопасить себя от пробоя оставшихся кусков старых труб в перекрытиях.
Видео: пример ремонта совмещенного санузла в хрущевке
Совет: Для столь маленьких санузлов, как в хрущевках, лучше подойдут такие варианты, как угловая ванна, невысокая по профилю раковина, под которой размещается стиральная машинка.
Выравнивание полов по уровню во всей квартире-хрущевке
Нередко в хрущевках на кухне и санузле полы выполнены иначе, чем в остальной квартире.
В кухне и ванной формируется стяжка, а в комнатах — на лагах деревянный пол из досок или паркет. Несколько реже встречается вариант со стяжкой в комнатах, только и она отличается по уровню. Из-за малой толщины перекрытий и использования лаг и деревянного настила звукоизоляция между этажами столь же плоха, как и через внутренние перегородки. В виду большого срока эксплуатации зданий, которые были рассчитаны на 25, максимум 50 лет, в хрущевках нередко проявляются проблемы, связанные с нарушением гидроизоляции.
В ходе ремонта полов следует решить несколько задач:
- Свести все полы в один уровень или сформировать адекватные переходы;
- Восстановить или полностью заменить слой гидроизоляции на кухне и в ванной;
- Обеспечить утепление и звукоизоляцию полов по всей квартире.
Собственно все работы проводятся согласно общепринятым правилам и инструкциям. Только следует учитывать, что толстый слой стяжки формировать нельзя из-за большой результирующей нагрузки на перекрытия, они на это не рассчитаны.
Лучше всего подойдет утепление из плотного пенополистирола толщиной в 2-5 см и формирование тонкой стяжки или наливных полов.
Отделка стен и потолков в хрущевках
Сложность отделки в хрущевках состоит в предельно малой толщине перегородок. Как уже говорилось выше, перегородки выполняются здесь из гипсобетона, пенобетона или дерева. В виду различий между этими материалами отличны и особенности их отделки и восстановления.
Деревянные перегородки формируются с обивкой дранки и оштукатуриванием. Такие стены подвержены деформации, и очень сложно избежать образования трещин, даже после профессионального ремонта. Любой ремонт комнаты в хрущевке следует начинать с укрепления стен по краям с помощью металлических уголков. После их можно оштукатурить с применением армирующей сетки. В качестве отделочного материала подойдут толстые обои, пробка и пробковые обои, покраска или же декоративная штукатурка. Главное, чтобы слой отделки не превышал 1-2 см. Ведь при малых размерах комнат не стоит тратить ни одного лишнего квадратного сантиметра площади.
Так что любые виды обшивки, которые монтируются на обрешетку, неприемлемы.
Перегородки из пенобетона и гипсобетона легко поддаются отделке. Они практически не деформируются и достаточно прочны. Основная проблема — это сравнять их. Использовать продуктивный метод с маяками вряд ли получится, и при этом будет опять-таки занято слишком много места. Так что предстоит повозиться с выравниванием стен с использованием стартовой шпаклевки в несколько слоев в тех местах, где обнаружены глубокие перепады. Несколько слоев необходимы, ведь при толщине слоя шпаклевки в 2-3 мм уже заметна усадка раствора при застывании и возможно его растрескивание.
Другим вариантом может стать либо оклейка стен тонкими гипсокартонными листами, либо же полная замена перегородок на гипсокартон, укрепленный на каркасе из профиля. Последний вариант сразу же решит и другую насущную проблему хрущевок, а именно сложность в разводке электрических проводов и установки розеток и выключателей.
Если необходимо выполнить сверление гнезда под розетку или выключатель, то предстоит делать это предельно внимательно и аккуратно.
Толщина перегородок столь маленькая, что легко можно сделать сквозное отверстие в соседнюю комнату или же вовсе к соседям. При использовании специальных насадок необходимо воспользоваться ограничителем на дрели, чтобы выполнить бурение на строго определенную глубину.
Важно: Не следует штробить стены под проводку с применением перфоратора или ударной дрели. Лучше всего применить болгарку с кругами по бетону. Только так можно будет гарантировать сохранность тонкой перегородки.
Потолки в хрущевках так же, как и стены не отличаются ровностью. Стыки между плитами чаще всего очень ярко просматриваются и иногда перепады могут достигать 2 сантиметров. Чтобы вывести потолок в один уровень, можно разве что предложить самую простую форму подвесного потолка. В этом случае каркас из профиля крепится без подвесов непосредственно к потолку с помощью специальных держателей в виде перфорированных лент.
Перепланировка хрущевки
По своей конструкции дома-хрущевки опираются на несущие внешние стены и систему колон. Это позволяет несколько проще подходить к вопросу перепланировки. Практически все перегородки внутри квартиры не являются опорными и могут быть демонтированы. Это позволяет расширить или объединить комнаты для получения более габаритных помещений. В результате можно переделать обычную трехкомнатную хрущевку в нормальную полноразмерную двухкомнатную квартиру. В другом варианте можно расширить основную комнату, которая будет использоваться как гостиная или зал за счет спальни.
Совет: Чтобы понять, как переделать свою квартиру — найдите её паспорт с планом сверху или нарисуйте схему его на бумаге. Думая об изменениях — забудьте о том, что на рисунке именно ваша квартира и не думайте о сложности перепланировки — только так удастся придумать интересный вариант. А уже результат фантазий «натянуть» на ваши технические и финансовые возможности.
Вариант перепланировки 2-х комнатной квартиры, предусматривающий создание единой зоны из кухни, гостиной и прихожей и расширения за счет части коридора санузла.
Возвести новые перегородки лучше с использованием гипсокартона. Кирпич в этом случае малопригоден, так как вес конструкции будет слишком большим. Абсолютно все работы по перепланировке обязательно должны быть заверены и выполняться после согласования и получения разрешений. В первую очередь это связано с безопасностью всего здания в целом. Ведь если хотя бы несколько жильцов перенесут перегородки, то кардинально изменится картина распределения нагрузок на перекрытия и колонны.
Видео: хрущевка ДО ремонта…
…и ПОСЛЕ ремонта
vopros-remont.ru
однокомнатные, двухкомнатные, трехкомнатные, типовые варианты, планировка в кирпичном доме
Изначально хрущевки строились как временное жилье – поэтому по плану их срок эксплуатации не рассчитан на длительный период.
Однако позднее власти страны приняли решение, что его можно увеличить в несколько раз, если ввести контроль по капитальному ремонту и вовремя его проводить. Перепланировка хрущевки позволяет компенсировать многие неудобства жилья.
Перепланировка хрущевки
Прежде чем приступить к переделке , необходимо узнать его типовую планировку. Хрущевки были построены 4-х серий, которые между собой отличаются высотой потолков, размерами кухни и других комнат. Но, несмотря на это, имеются и общее в описании типовых планировок. Общие признаки:
- Совмещенный санузел;
- Имеются проходные комнаты;
- Небольшая общая площадь квартиры;
- Низкие потолки;
- Недостаточная тепло- и звукоизоляция.
Переделка хрущевки позволяет несколько улучшить вышеуказанные недостатки, кроме разве, что невысоких потолков. Положительным моментом в этом вопросе является то, что все внутренние стены в квартирах этого типа относятся к перегородкам, которые можно сносить.
Правда, все это необходимо регистрировать в соответствующих органах.
Варианты
Стандартные планировки квартир в хрущовках часто не устраивают владельцев жилья, поэтому они стремятся сделать его комфортнее, придумывая дизайн, который визуально придаст квартире приятный вид, либо сделав перепланировку. Первым делом при перепланировке необходимо составить проект. Если вы не обладаете соответствующими навыками и опытом, то самостоятельно сделать его практически невозможно. Поэтому рекомендуется обратиться за помощью к специалистам.
Основные варианты:
- Снести одну из стен, которые не относятся к несущим;
- Убрать часть стены;
- Переделка дверных проемов (сюда входит закладывание старых и создание новых).
Самые распространенные способы переделок:
- Демонтировать стену между комнатой и кухней;
- Облагораживание балкона;
- Перенос стенки межу комнатами.
Однокомнатная квартира
Лучшим вариантом является переделка однушки в студию.
В этом случае демонтируют перегородки между жилой комнатой, кухней и прихожей. Незадействованными остаются только стены ванной комнаты.
Можно увеличить размер прихожей, в таком случае можно установить шкаф-купе.
Увеличение площади однокомнатной хрущевки возможно за счет балкона. В некоторых случаях это позволяет превратить квартиру в двухкомнатную.
Имеется неплохой вариант перепланировки однокомнатной хрущевки в кирпичном доме. В стандартном варианте санузел и кухня имеют очень маленькие площади, поэтому рекомендуется заменить ванну душевой кабинкой. Такой шаг позволяет правильно разместить сантехнику и добавить стиральную машину.
Также сэкономить пространство помогает замена стандартных дверей на раздвижные или на двери-гармошку.
2-х комнатная квартира
При переделке 2-х комнатной хрущевки, интересных вариантов становится гораздо больше. Квартиры такого типа были тоже довольно маленькими, поэтому, перемещение перегородок позволяет решить немало проблем.
К примеру, разделение дополнительной перегородкой смежных комнат, позволяет превратить двухкомнатную в трехкомнатную. Это особо актуально для семей с разнополыми детьми. Но многие предпочитают наоборот сделать жилье более просторным, объединив комнаты.
Двухкомнатную хрущевку в панельном доме многие владельцы превращают даже в студию. Для этого объединяют гостиную и кухню. В этом случае основной задачей строителей становится смещение входных дверей. За счет этого можно получить большую прихожую, которая в дальнейшем может послужить и гардеробной. При этом большую комнату можно разделить на две зоны: спальню и рабочую. Если боитесь, что в спальне будет мало света, то перегородки поднимаем всего на полтора метра от пола.
3-х комнатная квартира
Изначальная планировка 3-х комнатной квартиры в хрущевке не предусматривает проходных комнат, что упрощает задачу перепроектирования. Имеющиеся 3 комнаты достаточно большие, а единственными проблемными зонами остаются туалет и санузел.
В силу чего перепланирование 3-х комнатной хрущевки может заключаться в расширении этих помещении за счет сокращения прихожей. При необходимости получения большого помещения можно допустить совмещение гостиной и комнаты, а чтобы новое помещение имело правильную геометрическую форму, можно перенести стену, добавив полезного пространства в спальне. Изменение конфигурации спальни можно использовать при разработке дизайна, например, выделить отдельное спальное место для ребенка или создав рабочую зону. Если комната предназначена для взрослого, то получившуюся нишу можно оборудовать под гардеробную.
Не отличается габаритами и помещение кухни. В этом случае перепланировка может заключаться в смещении стены в сторону гостиной. Кухня в хрущевке может иметь два выхода: в коридор и гостиную, один из них можно заблокировать или расширить, декорировав проем под барную стойку.
4 -х комнатная квартира
Сама 4-х комнатная хрущевка, если рассматривать с точки зрения полезного пространства, достаточно габаритна.
Проблемными местами в квартире остаются кухня и санузел – это самые небольшие помещения. Чаще всего их стремятся расширить за счет пределов прихожей, так как перегородки не являются несущими и согласовать их перемещение достаточно просто. Существенной проблемой является то, что комнаты проходные. В этом случае перепланировка в 4-х комнатной квартире может иметь ряд сложностей. Так, перегородки могут являться несущими, что не позволит их демонтировать или изменить конфигурацию.
Еще одним вариантом будет совмещение столовой и гостиной, что уменьшит число дверных проемов, выходящих в прихожую и сократит число проходных комнат.
Кухня
Кухня в хрущевке обычно очень маленькая и доставляет неудобство жильцам.
Немало трудностей имеет процесс переделки в хрущевке с газовой колонкой, как в двухкомнатной, так и в однокомнатной квартире.
Кухня в 5 метров требует не столько перепланировки, сколько правильной планировки. Последнее предполагает выбрать правильный дизайн.
Кухня с колонкой не позволяет использовать место ее установки с максимальной пользой. Но, при правильном размещении предметов мебели пространство можно визуально расширить. Так, оптимальным решением будет приобретение угловой кухни и перенос обеденной зоны.
Расширить пространство кухни вполне реально, так как перегородки в кухни не являются несущими элементами, а значит, их можно снести. Особенно это актуально для двухкомнатной квартиры, а в пределах однокомнатной – это не самое лучшее решение, так сократит пространство другой комнаты.
Санузел и ванна
Перепланировка санузла в хрущевке должна проводиться с учетом СНиПов. Проект перепланировки санузла и туалета в хрущевке должен учитывать положение водопроводных коммуникаций и канализационного стояка.
Основное недовольство ванной в хрущевке заключается в ее малогабаритности. Расширить ее обычно почти невозможно, потому что запрещается, чтобы ванна находилась над жилым участком квартиры соседей снизу.
Для более комфортного ее обустройства, попробуйте прибегнуть к хитростям дизайна.
Реконструкция заброшенных заводов / Новости / Интернет-сайт Москвы
Перепрофилирование заброшенных промышленных территорий стало стратегическим приоритетом Москвы. До недавнего времени старые фабрики занимали огромное количество земли, около 18 800 гектаров (вся территория Лихтенштейна занимает всего 16 000 гектаров). Действующие объекты составляют лишь пятую часть промышленных зон Москвы.
Эти районы иногда называют «поясом ржавчины» Москвы. Из-за того, что оригинальные фабрики были построены в 19, и веках, большинство этих производственных объектов было закрыто к 2000 году.Некоторые из них устарели и требовали модернизации, другие же не пережили 1990-х годов и не смогли адаптироваться к новой экономической реальности. В зданиях было много ценных образцов промышленной архитектуры; однако они пришли в упадок без надлежащего обслуживания, их конструкции подверглись коррозии, детали конструкции разрушились, а инженерные сети вышли из строя.
Москва планирует поддерживать хорошо функционирующие промышленные компании, но они должны иметь доступ к передовым технологиям и быть конкурентоспособными.Заводы и фабрики, которые десятилетиями были закрыты по финансовым причинам, постепенно превращаются в новые городские резиденции и инновационные компании с новыми возможностями трудоустройства.
Пионеры перепланировки
В Москве есть много примеров успешной промышленной редевелопмента. На смену старым цехам приходят жилые кварталы, офисные здания, технопарки и общественные места. Московские проекты — постоянные обладатели международных архитектурных премий.В 2000-х арт-центры открывались на территории бывших московских фабрик, что сделало творческое сообщество города законодателями мод в этом движении.
Центр современного искусства Винзавод — один из таких проектов. Он был построен на месте пивоварни «Московская Бавария» начала 19 -го века, которая в разное время производила пиво и вино и несколько раз меняла владельцев.
В 20 -м годах советский завод производил до 170 наименований вин, но в начале 2000-х годов обанкротился.В здании бывшей пивоварни сейчас расположены галереи современного искусства, мастерские художников, дизайнеров и фотографов, кафе, выставочные залы, детские студии и различные магазины.
Винзавод теперь является частью большого творческого квартала, в который также входит Arma Center , пришедший на смену Московскому газопромышленному заводу 1866 года. Теперь здания сравнивают с аналогичными модернизированными заводами в Вене, Копенгагене, Дрездене и других городах. Завод поставлял газ в город до середины 20 -го века.После перестройки он изменил свое название на Arma и производил запорную арматуру, регуляторы давления и другую арматуру и фильтры. Производство почти полностью прекратилось в конце 1990-х, а в 2003 году музыканты, дизайнеры, мастера и художники стекались в этот район. В 2010-х годах завод был реконструирован, так как старые здания были реконструированы, а резервуары для хранения газа были превращены в офисные помещения, сохранив при этом свой внешний вид.
Сегодня Арма — это бизнес-центр с коворкингами, лофтами, кафе, типографией, репетиционной студией, дизайнерским бюро и архитектурными мастерскими.
Еще один промышленный район, который является примером удачной реновации, — знаменитая Кондитерская фабрика «Большевик» . Эта группа домов из красного кирпича была построена на Петербургском шоссе (ныне Ленинградский проспект) в 1884 году для наследников французского предпринимателя Адольфа Сиу. Завод стал первым промышленным предприятием в стране, имеющим электричество. Именно здесь было создано знаменитое печенье «Юбилейное» к 300 -летию Дома Романовых.После революции фабрика была национализирована и в советское время продолжала выпускать печенье и торты. В 1990-е годы владельцы превратили большую часть помещений в складские помещения, и постройки постепенно пришли в упадок.
В начале 2010-х завод переехал во Владимирскую область, а на Ленинградском проспекте проводился капитальный ремонт.
Фасадный декор, напоминавший бисквитный орнамент, восстановлен по архивным чертежам и фотографиям.Три здания, выходящие на Ленинградский проспект (которые считаются наиболее ценными частями строительной конструкции), сохранились в первозданном виде. Бывшие здания большевистского мукомольного склада стали новым художественным центром, поскольку в этом высокотехнологичном здании разместился Музей русского импрессионизма. Архитекторы «обернули» огромный глянцевый цилиндр музея в перфорированный листовой металл, а наверху построили стеклянную крышу.
Полуостров будущего
Реконструкция промышленных зон Москвы шла полным ходом в 2010 году.За этот период модернизированные кварталы расширились за счет жилых домов, коммунальных и производственных объектов. Площадь новостроек сейчас составляет более 23 млн кв.
Бывший завод ЗИЛ — один из самых перспективных районов города, по мнению местных строительных компаний. Жилой район в конечном итоге заменит место знаменитой автомобильной компании с парками, школами, медицинскими и спортивными объектами, зонами отдыха и творческими студиями.
Технопарк «Нагатино ЗИЛ» обеспечит работой местных жителей.
ЗИЛ сильно пострадал от спада производства после распада Советского Союза. Пустые мастерские пришли в упадок, а эта огромная территория заброшена и заброшена. В 2012 году город решил провести реструктуризацию промышленной территории и оставить 50 га в южной части под производственные площади. «Полуостров», охватывающий несколько сотен гектаров между Автозаводской улицей, Симоновской набережной и проспектом Андропова, после перестройки станет городом внутри города с собственной инфраструктурой и достопримечательностями.
ЗИЛ будет иметь филиал самого Эрмитажа, а также парки, бульвар, красивую набережную, театры, концертные залы, картинные галереи и арт-центры. Уникальный ландшафтный парк «Тюфелева роща» открылся в 2018 году. Коллекция парка насчитывает тысячи деревьев и кустарников, растений и сортов злаков. Посетители также могут насладиться видом кристально чистого пруда и длинной беседки с жалюзи, напоминающей гигантскую конвейерную ленту.
Один из самых длинных бульваров Москвы будет построен на территории бывшей промышленной зоны, протяженностью более 1 кв.2 км.
Олимпийский центр синхронного плавания Анастасии Давыдовой, ледовый стадион, набережная со 150-метровым амфитеатром, крупнейшая в стране школа, станция метро и станция Московского центрального кольца (МЦК) — это уже построенные объекты у бывшего вагона. растение. Поблизости расположен крупнейший в Европе крытый парк развлечений Dream Island.
Лаборатории для ученых, искусство для поэтов
Промышленная зона в современном районе Лефортово была построена в конце 19-го -го -го века, когда французский предприниматель основал здесь Московскую Металлическую Компанию.В советское время компания выросла до крупнейшего завода в Центральной России и получила название «Серп и молот» Московская металлургическая компания . Он работал на протяжении 20 -го века, но производство остановилось в 21 -м веке.
Сейчас новый район постепенно занимает 58 гектаров, ранее занимаемых цехами по металлу.
Концепция проекта была выбрана на международном конкурсе. Его выиграла LDA Design, британская архитектурная фирма, известная проектами реконструкции промышленных зон в Европе, Олимпийского парка в Лондоне и реконструкцией Центрального парка в Нью-Йорке.
Около 19 000 человек найдут новый дом в этом современном жилом районе площадью более 1 млн кв. Также будут выделены площади под жилье, которое будет построено в рамках программы расселения Москвы. Помимо жилых домов, в районе будет концертный зал на 3700 человек, с музыкальными студиями, классами пения и другой инфраструктурой.
Для жителей нового района будут построены две школы, в том числе магнитная школа с углубленным изучением физико-математических наук, созданная в партнерстве с МГТУ им. Н. Э. Баумана, а также восемь детских садов, поликлиника для детей и взрослых и спорт. объекты и магазины.Зеленые зоны займут треть территории.
Первая секция нового парка Грин-Ривер открыта с лета прошлого года: пешеходный мост, поддерживаемый массивными плантациями, висячие сады, амфитеатр с качелями, лабиринт в столетнем дубе, гигантская песочница, «облако» пни и другие достопримечательности, которые стоит увидеть.
Улицы в новом районе будут названы в честь русских путешественников и исследователей. Уже есть бульвар Сенкевича, проезд Шелихова и проезд Невельского.Главная улица района будет носить имя адмирала Адама Иоганна фон Крузенштерна.
Арт-деко модерн
На северо-западе Москвы развивается еще один микрорайон, где раньше располагались складские и производственные помещения. Архитекторы предложили построить здесь жилой комплекс, имитирующий стиль советского ар-деко, характерный для этой части города. Промышленная зона «Октябрьское поле» будет реконструирована в рамках первого в России соглашения о комплексном освоении территории, подписанного между инвестором проекта и Департаментом инвестиционной и промышленной политики Москвы.
Строительство участка площадью 12 га началось в 2015 году после того, как инвестор закрыл сделку по недвижимости. В прошлом эта территория использовалась несколькими производственными компаниями. До этого, в середине 20-го -го -го века здесь находились бараки для строителей Курчатовского института. Четыре дома на улице Берзарина, завершенные в ходе первой очереди строительства, уже приняли своих жителей, а также детский сад и магазины розничной торговли. В стадии строительства находится вторая очередь: школа, еще один детский сад, поликлиника.
Территория вокруг жилых домов будет благоустроена для удобства местных жителей. На 1,5 гектарах бывшей промышленной зоны будут посажены деревья и трава, образуя сквер и зеленую зону вдоль планируемой улицы Как в стилистике улицы Берзарина, сквер и зеленая зона вдоль планируемой улицы Расплетина. , а также часть улицы Генерала Глаголева. Также будет реконструирован участок улицы Берзарина от пересечения с улицей Максимова до пересечения с улицей Расплетина.
В сотрудничестве с Департаментом инвестиционной и промышленной политики инвестор проекта планирует открыть на реконструированной территории технопарк, где будет создано около 1500 рабочих мест. Ожидается, что промзона Октябрьское Поле будет полностью реконструирована к концу 2024 года.
Цветущий квартал вместо ангаров
Еще одна точка на карте Москвы, ожидающая редевелопмента — промзона Грайвороново . Он охватывает 360 га между Рязанским проспектом, грузовыми железнодорожными путями и путями МЦК.Зона разделена на пять проектов редевелопмента, в том числе несколько жилых комплексов с коммунальными услугами и торговлей.
Часть бывшей промышленной зоны была превращена в парк с вишневыми и яблоневыми садами на площади 7,5 га, а жилой район окружают березы, ясени, сосны и ели. В парке есть амфитеатр и зона для массовых мероприятий, велосипедные дорожки, зона для настольного тенниса, набережная с беседкой и зона отдыха со скамейками.
Холмистое парковое пространство является продолжением благоустройства бульвара, протяженностью 860 метров.В прошлом году вдоль бульвара высажено более 200 деревьев и 12 500 кустарников. Весной и летом посетители могут полюбоваться декоративными вишнями и каштанами, а осенью и зимой сосны и ели усиливают очарование бульвара.
Другие строительные проекты в этой бывшей промышленной зоне включают детские сады, школы, поликлиники, подземную автостоянку, многоуровневые гаражи и многоцелевые центры с магазинами, офисами, торговыми центрами и спортивными залами.
Продолжение следует
В 2010 году в границах старой Москвы (до присоединения территорий) насчитывалось около 200 промышленных и коммунальных территорий, общая площадь которых составляла 18 800 га (17% площади города).В городе принято решение о перепланировке почти 13 000 га (4700 га полностью и 7800 га частично).
Десятки этих промышленных зон уже отремонтированы и заменены примерно 20 миллионами квадратных метров жилой и другой недвижимости, что создало почти 500 000 новых рабочих мест.
Эти проекты изменили инфраструктуру и улучшили окружающую среду целых районов.
Что касается остальных промышленных территорий, то большинство из них также вовлечено в обширное строительство или ожидает завершения проектных работ и оформления документов городского развития.Это означает, что в ближайшие несколько лет город продолжит преобразовывать эти заброшенные районы в интересные и комфортные районы.
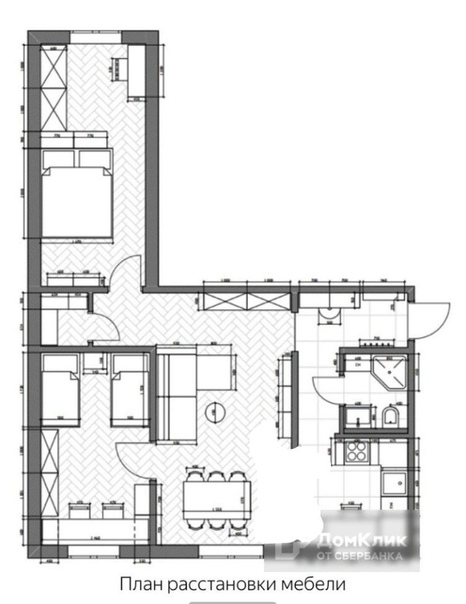
Способы перепланировки «хрущевки»
Самый распространенный тип жилья — это небольшие двухкомнатные квартиры площадью от 43 м² до 45 м². Обычно обычные «двушки», называемые в народе «хрущевками», отличаются теснотой и отсутствием грамотной планировки. В таких квартирах узкие коридоры, миниатюрные кухни и ванные комнаты, а главное — неудобно оформленные комнаты, одна из которых является проходной.Именно поэтому у владельцев «хрущевок» часто возникает желание кардинально изменить и отстроить свои дома заново. Тщательно продуманная перепланировка способна раскрыть скрытые резервы необходимой площади и помочь оптимально использовать каждый квадратный метр.
С чего начнется перепланировка «хрущевки»?
Перед тем, как приступить к ремонтным работам, каких результатов добиться с помощью перепланировки: получить большую гостиную или широкий коридор, а может быть, большую ванную комнату или просторную кухню? Перепланировку 2-х комнатной «хрущевки» нужно начинать с составления проектов изменений в помещении.Желательно доверить эту работу профессионалу — так вы будете уверены, что будущая жилищная реформа не нанесет вреда всему дому. Также необходимо оформить перепланировку. Серьезный ремонт помещения желательно начинать с оформления всех необходимых разрешительных документов, иначе переоборудованную квартиру будет невозможно продать, поменять или отдать. Отсутствие действующего техпаспорта на жилье грозит его хозяину возможными неприятностями.Основные возможности перепланировки «хрущевки»
Основными методами перепланировки «хрущевки» являются: ликвидация любой стены, частичный демонтаж стен, перенос дверных проемов или перегородок на другие места.
Самый распространенный способ переделки квартиры — объединение одной гостиной (холла) с кухней. Это зрительно увеличит пространство гостиной и внесет в нее особое ощущение свободы и воздушности.

Варианты увеличения ванной комнаты
Одним из способов увеличения площади ванной комнаты является совмещение ванной и туалетной комнаты. Это позволяет разместить в комнате стиральную машину или угловую ванну. Использование душевой кабины существенно увеличивает свободную площадь санузла «хрущевка». Перепланировка (фото наглядно демонстрируют ее преимущества) позволяет получить смежный санузел с оптимальным расположением необходимой мебели и сантехники.
Санузел совмещенный становится просторнее и удобнее.Другой вариант перепланировки — переделка коридора: его пространство разделено между ванной и кухней (для этого перенесены стены этих помещений). В результате такого изменения получается довольно просторный коридор и увеличивается площадь санузла, что позволяет установить в нем всю необходимую сантехнику. Кухня при этом немного увеличивается, но при желании из гостиной можно убрать общую стену, сделав квартиру-студию. В любом случае перепланировка позволяет преобразить комнату, сделав ее более уютной, современной и просторной.
p>«Путешествие в ГУЛАГ русского разума» Нина Леонидовна Хрущева
Нина Львовна Хрущева — правнучка Никиты Хрущева. Жесткие коммунисты ненавидели Хрущева за то, что он провозгласил «оттепель» и выставил Сталина чудовищем, которым он был в своей знаменитой «секретной» речи 1956 года. Практически все в коммунистической системе были замешаны в зверствах Сталина, включая Хрущева, поэтому публичные разоблачения им очень угрожали.Леонид Хрущев, дед Нины, был одним из детей Никиты Хрущева от его первой жены (умершей в 1
Нина Львовна Хрущева — правнучка Никиты Хрущева.Жесткие коммунисты ненавидели Хрущева за то, что он провозгласил «оттепель» и выставил Сталина чудовищем, которым он был в своей знаменитой «секретной» речи 1956 года. Практически все в коммунистической системе были замешаны в зверствах Сталина, включая Хрущева, поэтому публичные разоблачения им очень угрожали. Леонид Хрущев, дед Нины, был одним из детей Никиты Хрущева от его первой жены (умершей в 1919 году от брюшного тифа).
По сути, он был беспричинным бунтарем и постоянно испытывал неприятности из-за того, что мы считали безобидным бунтом против системы.Только отец удерживал его от ГУЛАГа. Во время войны он стал летчиком-истребителем и погиб в бою в нескольких сотнях километров к западу от Москвы. Его жена, бабушка Нины, в то же время была отправлена в ГУЛАГ за отвратительное преступление, связанное с контактом с иностранцем.
Нину воспитывали прабабушка и дедушка, которых она считала своими бабушкой и дедушкой.
В советское время (и, возможно, сегодня) россияне верили в вину по ассоциации. Чтобы дискредитировать Никиту Хрущева, после того, как он был свергнут в 1964 году Леонидом Брежневым, начали распространяться истории о его сыне, убийце, преступнике и нацистском предателе, который не погиб в бою, а был казнен Сталиным.Истории утихли с Горбачевым и Ельциным, но были воскрешены Путиным и его великой реабилитацией Сталина как великого лидера. Нина решила найти истину, и эта книга — результат.
