Перепланировка хрущевок двухкомнатных: Перепланировка хрущевки с 2 смежными комнатами: варианты перепланировки двухкомнтаной хрущевки, фото
Варианты перепланировки двухкомнатной хрущевки с фото
«Люди как люди. Любят деньги, но ведь это всегда было… обыкновенные люди… в общем, напоминают прежних… квартирный вопрос только испортил их…» (М. Булгаков, «Мастер и Маргарита»).
В конце 50-х годов прошлого века началось переселение жителей городов из коммуналок в отдельные квартиры, которые сегодня презрительно называют «хрущевками». Да, качеством, большой площадью (кухни в них в пределах 6 м²) и удобством они не отличаются, однако нужно напомнить, что в свое время это был прорыв. Ведь нормой на одного жителя Москвы были 4 м² площади, люди ютились в коммунальных квартирах с общей кухней и санузлом. Стоит пересмотреть фильм «Покровские ворота», в котором герои обсуждают в одной из сцен грядущий переезд в новые (отдельные!) квартиры.
Первую линию для производства таких домов закупили во Франции. Кстати, все крупнейшие страны строили подобные жилые дома. В СССР дома такого типа прекратили строить только с началом перестройки в 1985 году, успев возвести к этому времени почти 300 миллионов м².
Вот несколько планировок «хрущевок» (интересно, что наш народ каждой придумал неофициальное название):
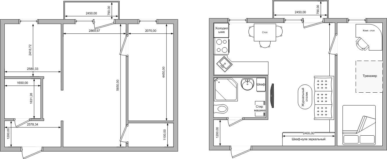
Такая планировка квартиры, прозванная «книжкой», имеет общую площадь 41 м², смежные комнаты и считается одной из самых неудачных.
Планировка, прозванная «трамвай». Общая площадь квартиры 48 м², комнаты смежные, однако при перепланировке их можно разделить достаточно безболезненно.
Свое прозвище («мини-улучшенка») планировка квартиры общей площадью 44,6 м² заслужила тем, что она практически повторяет планировки в 9-этажках. Проектировщики уже сделали некоторые выводы. Комнаты изолированные, вот только размер кухни смущает. Однако при перепланировке кухню можно расширить до 8 м²
Такая планировка квартиры общей площадью 46 м² встречается достаточно редко. Прозвана «распашонкой» или «бабочкой», крылья которой напоминают две одинаковые симметрично расположенные комнаты. Обе имеют приличную площадь и изолированы. Проблема такой планировки – отсутствие возможности расширить площадь кухни, не вторгаясь в одну из комнат.
Расширение кухни за счет совмещения санузла – решение достаточно спорное, потому что полученная минимальная дополнительная площадь не стоит затрат на проведение перепланировки.
Перепланировка «хрущевки». С чего начинать?
С правового ликбеза. Не стоит думать, что, будучи собственником жилья, владелец вправе с этим жильем делать что угодно. Законом на владельцев жилья налагается ответственность, которая закреплена в Жилищном кодексе РФ.
Очень важно! Жилищный кодекс дает определение перепланировке и переустройству жилого помещения. Первый термин – это изменение конфигурации жилого помещения. По закону, все изменения должны быть внесены в технический паспорт квартиры. Второй – это установка, замена или перенос инженерных сетей, санитарно-технического, электрического и другого оборудования. И тоже с внесением изменений в техпаспорте жилого помещения. В лучшем (для вас) случае, при продаже, обмене квартиры внести изменения в техпаспорт все равно придется. Можно «нарваться» на штраф и предписание все вернуть в первоначальный вид.
Этим перечень возможных неприятностей при самовольной перепланировке не заканчивается и последствия для владельца жилья могут быть гораздо более печальными.
Процедура получения разрешения на перепланировку – это предмет отдельной статьи. Если ваши планы не включают снос несущих конструкций и перенос кухни на место жилой комнаты, разрешение получить не очень сложно. Несомненным плюсом «хрущевок» является то, что внутренние стены в них в основном ненесущие и их, после получения разрешения, можно сносить, устраивать новые дверные проемы и т. д. Это значительно расширяет возможности перепланировки подобных квартир. Такие действия относятся к так называемой простой перепланировке, их проще согласовать и для получения разрешения не нужно разрабатывать проект, достаточно на полученный в БТИ поэтажный план нанести планируемые изменения.
Варианты перепланировки двухкомнатной хрущевки
Основные проблемы квартир-хрущевок – маленькая площадь кухни, санузла, прихожей, одной из комнат и низкие потолки. Вот эти проблемы и призвана решить перепланировка квартиры.
Самый радикальный вариант – убрать все ненесущие стены (кроме санузла и ванной) и зонировать одно большое помещение различными легкими перегородками и дизайнерскими приемами. В итоге может получиться очень симпатичная и комфортная квартира-студия. Однако далеко не каждой семье такой вариант подходит, многим нужны изолированные комнаты. Кроме того, по закону одна комната в квартире обязательно должна оставаться жилой.
Заслуживают внимания варианты объединения в одно помещение гостиной и кухни или спальни и гостиной. Здесь все будет зависеть от состава семьи и необходимости выделения членам семьи изолированных комнат.
Дизайн кухни-гостиной:
Дизайн спальни-гостиной:
Кроме варианта перепланировки с совмещением двух комнат или гостиной с кухней, можно совместить ванную с санузлом. Вот примеры дизайна совмещенного санузла и размещения сантехприборов:
Вернемся к возможным вариантам перепланировки хрущевки.
Рассмотрим вариант «книжки». Главная проблема – проходная комната.
Перепланировка позволила сделать обе комнаты изолированными. Цена – уменьшение и без того небольшой площади второй комнаты. Однако многие такую цену готовы будут заплатить.
Площадь кухни при такой планировке можно увеличить только с помощью объединения кухни с комнатой. Других вариантов нет.
Но если нет возможности добавить к площади комнаты несколько дополнительных квадратных метров, можно ее увеличить визуально. Известно много приемов, которые помогут расширить маленькое помещение зрительно:
- Самый важный – цвет. Использование светлых пастельных тонов зрительно расширяет помещение. Любые яркие и насыщенные цвета будут его «сжимать».
- Мелкий цветочный принт на обоях также помогает визуально помещение расширить.
- Потолок должен быть светлым, лучше максимально близким по цвету к белому. Можно использовать натяжные потолки.
- Разноуровневый потолок из гипсокартона с дополнительным освещением «поднимет» высоту помещения.

- Половое покрытие – светлое или цветное в той цветовой гамме, которая выбрана для комнаты. Цветное половое покрытие зрительно «раздвигает» стены и «поднимает» потолок.
- Мебель не должна быть главным действующим лицом в помещении, акцент на ней делать нельзя. Хорошо, если мебель будет выбрана в тон стен и штор.
- Зеркала сделают комнату светлее – они будут отражать дневной и искусственный свет. Но надо соблюдать меру в их использовании для оформления интерьера.
Вот примеры маленьких комнат, которые такими не кажутся:
Зрительно увеличивают помещение и правильно подобранные фотообои. Они «работают» несколько иначе, чем классические дизайнерские приемы:
Перепланировка 2-комнатной квартиры с обидным прозвищем «трамвай» позволяет сделать обе комнаты изолированными. При взгляде на первоначальный план такой квартиры действительно вспоминаешь слова трамвайного кондуктора: «Не останавливайтесь в проходе, проходите в конец вагона!».
Очевидный недостаток такой планировки квартиры – невозможность расширить кухню без ее объединения с комнатой. А это далеко не всегда возможно.
Потери в площади будут, однако они отчасти компенсируются вместительным шкафом-купе, для которого появляется место в пространстве между комнатами.
Оставшаяся после перепланировки площадь «урезанной» комнаты остается достаточно комфортной.
Для того чтобы комнату зрительно расширить, используем уже знакомые нам дизайнерские приемы:
Перепланировка «мини-улучшенки» позволит значительно увеличить площадь кухни. После перепланировки площадь кухни составит 8 м². Это достигается разборкой кладовки (кладовку с успехом заменит современный шкаф-купе) и переносом на ее место санузла, место которого, в свою очередь, занимает ванная:
Все предложенные варианты надо рассматривать только как возможные, и не бояться дополнять и изменять их под свои потребности и желания. Превратить двухкомнатную «хрущевку» в комфортабельную квартиру – задача посильная.
Боитесь приступить к ее решению сами, тогда обратитесь к профессиональным дизайнерам. И все получится!
Перепланировка хрущевки 2 комнаты [Варианты + 90 Фото] 2019
Благодаря перепланировке из маленькой двухкомнатной хрущевки можно создать уютное и довольно просторное помещение европейского плана
Перепланировка хрущевки на 2 смежные комнаты, фото вариантов которой часто можно встретить в Сети интернет, уже давно является главной проблемой многих обладателей подобных квартир.
Небольшие жилые площади не дают возможности правильно спланировать пространство, от чего дом становится некомфортным. И все же решение такой проблемы существует, и заключается оно в грамотной дизайнерской перепланировке квартиры.
Содержание:
Кухня двухкомнатной квартиры в современном стиле
Декоративная перегородка из дерева для разделения помещения на зоны
Кухня-столовая в стиле модерн
Гостиная и кухня, оформленные в экостиле
Основной проблемой таких зданий является небольшая площадь кухонь и санузлов, потому для больших семей хрущевки неудобны. Многие обладатели квартир в данных застройках вынуждены смириться с дискомфортом, поскольку уверены в том, что единственным решением их проблемы могут быть сложные ремонтные работы со сносом перегородок, и необходимо собирать документацию для узаконивания перепланировки, а также согласовывать ремонтные работы с соседями. В данной статье мы расскажем о том, как превратить небольшую квартиру в комфортное место для проживания.
Перепланировка хрущевки (2 комнаты смежные): варианты подготовки
Гипсокартонная перегородка для разделения помещения на две комнаты
Перепланировка хрущевки на 2 смежные комнаты – это не косметический ремонт, а серьезный процесс, который требует ответственного подхода. Прежде чем приступать непосредственно к самому изменению конфигурации квартиры, важно позаботиться о согласовании перепланировки. Необходимо составить точный план с указанием всех деталей.
Перед началом работ по перепланировке квартиры необходимо позаботиться о ее согласовании
Работы по перепланировке лучше доверить опытным специалистам
Совет! Многие жители небольших квартир, решившись на перепланировку, считают ненужным ее узаконивание. Это большая ошибка, поскольку без утверждения документации на какие-либо изменения планировки в квартире помимо обоснованных жалоб соседей можно столкнуться с проблемами во время продажи квартиры.
Также стоит отметить, что без предварительной экспертизы даже опытные строители не смогут точно различить несущие стены, которые удерживают вес перекрытий, и самонесущие.
Именно потому, затеяв серьезные изменения в структуре квартиры, стоит пригласить для экспертизы профессионалов, которые проведут оценку и предложат выгодные варианты перепроектировки.
Двухкомнатная хрущевка до и после перепланировки
Варианты перепланировки двухкомнатной хрущевки
Перенос кухни в комнату
План перепланировки двушки
Перепланировка хрущевки на 2 комнаты, фото которой выглядят весьма привлекательно, все-таки включает в себя больше, чем обычное изменение визуального облика квартиры. Необходимо собрать следующий пакет документов:
- В бюро технической инвентаризации оформляется план этажей здания, непосредственно план квартиры и детальная экспликация помещений.
- Жилищную контору стоит посетить для того, чтобы узаконить свои права на перепланировку и на квартиру в целом, также заверить эскиз будущего плана.
- Если работы будут проводиться с учетом частичной или полной замены трубопроводов или электропроводки, необходимо обратиться за разрешением в газовую службу, санэпидстанцию, пожарный отдел.
Разработку дизайна будущей квартиры можете доверить специалистам или же сделать это своими руками, воплотив в реальность все свои творческие фантазии
В зависимости от сложности проводимых работ, количество документов может существенно возрасти.
Варианты перепланировки хрущевки на 2 смежные комнаты
Кухонный шкаф послужит отличной перегородкой между двумя комнатами
Двухкомнатные квартиры в хрущевках имеют простую структуру и зачастую очень легко поддаются изменениям в плане. Прежде чем приступать к самим работам, стоит детально изучить план здания и квартиры. Важно знать о том, что несущие конструкции нельзя сносить, поскольку они являются скелетом здания. Уничтожив такую опорную стену в своей квартире, можно существенно повлиять на состояние здания в целом. На фасаде могут появиться трещины, а в худшем случае такое самоволие приведет к разрушению дома.
Если же все этапы подготовки были детально продуманы, то можно приступить и к самим изменениям в квартире.
Квартира для семьи
Гипсокартонная перегородка между спальней и гостиной
Зачастую молодые семьи не могут приобрести дорогую квартиру в новостройке, потому обходятся небольшой хрущевкой, пускай и двухкомнатной. Основной задачей в изменении плана квартиры данного типа является разделение пространства на зоны.
Каждый член семьи нуждается в личном пространстве, именно поэтому для их комфорта необходимо смежную квартиру превратить в раздельную. Главным преимуществом хрущевок является то, что они в большинстве случаев имеют несущие стены только между квартирами, а в самих помещениях располагаются лишь перегородки. Это позволяет сносить преграды, расширяя пространство.
Объединить комнаты между собой стоит при помощи небольшого коридора. Это дает быстрый и легкий доступ к каждой из комнат. При этом увеличивается размер уже существующего коридора.
Комнату для взрослых необходимо устраивать в помещении с выходом на балкон, который можно превратить в лоджию. Такая конфигурация дает дополнительное пространство, тем более что на лоджии можно обустроить комфортную зону рекреации.
Спальня в пастельных тонах, объединенная с балконом
Утепленная лоджия больших размеров с легкостью может стать еще одной комнатой
Шикарная спальня двухкомнатной квартиры
Зона отдыха на небольшой остекленной лоджии
Детское помещение может иметь два выхода, один из которых будет выходить в комнату родителей, а другой непосредственно в коридор. Если в семье двое и более детей, то в маленьком пространстве стоит выделить отдельные зоны для каждого ребенка, сэкономив место за счет ярусных кроватей.
Комфортная детская комната со стильным дизайном
Зонирование цветом детской комнаты для двух детей
Перепланировка хрущевки на 2 комнаты, варианты и фото которой дают возможность выбрать наиболее интересный план, учитывает также изменения в структуре санузла.
Зачастую в хрущевках он раздельный. Для большой семьи это может стать плюсом, но для увеличения пространства стоит задуматься о том, чтобы совместить ванную и туалет. При необходимости разделить зоны в таком санузле можно при помощи прозрачных панелей.
Выборочное совмещение комнат
Небольшая столовая, совмещенная с гостиной
Решить проблему нехватки площади можно при помощи классического совмещения комнат. При этом для удобства жителей квартиры некоторые помещения все-таки разделяются и представляют собой функциональные зоны. Стандартная структура жилья с таким планом выглядит следующим образом:
- Прихожая совмещается с гостиной. Это в первую очередь существенно расширяет площадь, при этом объединяет два помещения с одним функциональным предназначением. При помощи современной мебели можно сохранить место под гардеробную. Балкон должен располагаться в этом помещении, что позволит визуально увеличить гостиную, при этом создать новое место для отдыха. Если балкон сделать теплым, то он может стать отличной лоджией для встречи гостей в любое время года.

- Совмещение туалета и ванной решает сразу несколько проблем. Зачастую в хрущевках установлены лежачие ванны, что непрактично с учетом малой площади помещения. В первую очередь стоит установить душевую кабинку или же душевую зону. Такая зона хороша тем, что занимает очень мало места. Она, в отличие от кабинок, не имеет дополнительных платформ, а ограждается при помощи пластиковых или стеклянных пластин. Если позволяет площадь кухни и ее меблировка, то стиральную машину можно установить именно в этом помещении, освободив место в санузле.
Душевая кабина своими руками в ванной комнате, совмещенной с туалетом
Ванная комната, совмещенная с туалетом, – один из способов расширения пространства
- Что касается раздельных комнат в совмещенной планировке, то это обязательно должна быть спальня и, по желанию, кухня. Спальня по своей функциональности предназначена в первую очередь для отдыха, поэтому важно позаботиться о ее надежной изоляции. Такое планировочное решение станет находкой для семьи с грудным ребенком, поскольку оградит малыша от внешнего шума.
Что касается кухни, то ее следует изолировать с целью предотвращения посторонних запахов в гостиной и других комнатах.
Спальня, расположенная возле кухни
Благодаря перепланировке можно организовать большую спальную комнату
Уютная спальня в стиле фьюжн
На помощь любой планировке придет современная многофункциональная мебель, которая предоставит недостающее хрущевкам пространство.
Как визуально расширить пространство?
Кровать-чердак с рабочим местом – отличное решение для небольшой квартиры
Очевидно, что масштабные изменения в плане квартиры влекут за собой много строительных работ, а следовательно, и большие затраты.
Совет! Для того чтобы дорогостоящая перепланировка была выполнена качественно, стоит обратиться за помощью к профессионалам.
Стеклянные межкомнатные двери в интерьере скандинавского стиля
Стиль лофт в интерьере двухкомнатной квартиры
Стильные люстры и неоновая подсветка подчеркнут современный стиль интерьера
Если сложные и основательные работы не подходят, то на помощь могут прийти различные дизайнерские уловки.
Хрущевка на 2 комнаты без перепланировки может выглядеть просторно лишь в том случае, если из квартиры устранить все ненужные мелкие вещи. Они загромождают столь необходимое место, а выбросить их хозяева квартиры попросту не могут в надежде на то, что каждая вещь когда-то все-таки понадобится. Потому в первую очередь стоит провести генеральную уборку с полной инвентаризацией, а все ненужное выбросить.
Мебель в квартирах такого типа должна быть вместительной и многофункциональной. Не нужно приобретать громоздкие шкафы и диваны с богатой обивкой, лучшим решением станет минимализм.
Кухня двухкомнатной хрущевки с вместительной и многофункциональной мебелью
Совмещенные кухня, столовая и гостиная в стиле современной классики
Рисунки на стенах, а также обои стоит использовать с целью расширения пространства. Длинные горизонтальные полосы, как известно, в разы удлинят комнату, а горизонтальные делают ее визуально выше.
Прозрачные элементы – еще один помощник при необходимости зрительно расширить жилую площадь.
Столы, стулья и даже прозрачные межкомнатные перегородки имеют легкую структуру и не загромождают пространство, а к тому же смотрятся стильно и привлекательно.
Зеркала способны визуально увеличить комнату в два раза, а то и больше при грамотном их размещении. Лучше всего зеркала смотрятся в прихожих, поскольку выполняют сразу две функции: создают комфорт для жителей и гостей квартиры и увеличивают пространство. Главное, чего требует дизайн перепланировки хрущевки на 2 комнаты, так это того, чтобы квартира была единым целым, поэтому не нужно делать много акцентов.
Выводы
Благодаря перепланировке квартиры вы сможете расширить маленькие комнаты
Обладать собственным гнездышком всегда хорошо независимо от того, какой размер дома или квартиры. Хрущевки действительно имеют очень малые площади, но строились они надежными и долговечными. А то, насколько комфортной станет квартира в таком доме, зависит только от ее владельцев. Благодаря разнообразию современных строительных и дизайнерских приемов преобразить любое помещение можно до неузнаваемости.
Яркий дизайн прихожей двухкомнатной хрущевки
Маленький обеденный стол послужит границей между спальной и гостиной зонами
Главным достоинством такой застройки является небольшое количество несущих элементов в жилом пространстве, что дает широкое поле для деятельности и воплощения в жизнь своих представлений об идеальном жилье. Если перепланировка будет заключаться в серьезных ремонтных работах со сносом перегородок, тогда стоит обратиться за помощью к профессионалам и оформить соответствующую документацию на план изменений.
Квалифицированные инженеры и дизайнеры в соответствии с вашими пожеланиями создадут новую квартиру, которая будет не только привлекательной, но и удобной для каждого ее жителя.
Планировка двухкомнатная квартира хрущевка. Реальные примеры перепланировки «хрущевки»
Планировка двухкомнатная квартира хрущевка. Реальные примеры перепланировки «хрущевки»
Если вы владелец двухкомнатной хрущевки и решили обновить и преобразовать свою квартиру в комфортное и стильное жилище, то обязательно встанет вопрос о создании дизайн-проекта.
Перепланировка предполагает, что некоторые участки стен, возможно, будут убраны или наоборот поставлены новые перегородки там, где их не было. Поэтому сразу обращаем внимание на то, что демонтаж возможен только относительно не несущих перегородок. Перекрытия также рассчитаны на определенную нагрузку, иначе дом может просто рухнуть в один прекрасный момент.
Проект перепланировки квартиры должен быть абсолютно безопасным в этом отношении и обязательно согласован и утвержден соответствующими органами контроля. В связи с этим отметим, что значительная часть внутренних стен в хрущевках – это ненесущие конструкции, поэтому чаще всего их снос возможен без разрушительных последствий для дома.
Планировка 2-ух комнатной квартиры без планировки и с перепланировкой
Что представляет собой двухкомнатная хрущевка?
Это малогабаритная квартира площадью около 43 м2, имеющая:
- одну большую комнату-зал, как правило, проходную.
- комнату поменьше – спальню.

- очень тесные кухню – 6-5 м2 и
- коридор – 2-3 м2
- небольшой совмещеный санузел.
Итак, изначальный вариант планировки двухкомнатной хрущевки нас неустраивает и мы решительно хотим кардинального изменения жилого пространства. Однако эти изменения должны отвечать нашим потребностям (у всех они свои), образу жизни, составу семьи, увлечениям и т.д. Поэтому вы должны четко определиться, что должно получиться в результате перепланировки, какие зоны необходимы, или они уже есть, но очень малы и их нужно расширить, а от каких нужно совсем избавиться или уменьшить в размерах. Как правило, это стандартный набор зон: кухня, гостиная, рабочая зона или кабинет, спальная, детская, гардеробная.
Деление жилого пространства на функциональные зоны, соразмерные своим ролям добавляет существенные удобства для проживания. Например, кухня имеет рабочую зону для приготовления пищи и зону для ее принятия. Кроме того, именно на кухне проводится масса времени, там же принимают гостей, поэтому она еще выполняет функцию гостиной.
Соответственно, проект зонирования должен предусматривать и грамотно совмещать эти зоны. Интересным решением этой задачи может стать объединение кухни и зала. Если вышеописанная роль зала действительно важна и необходима, то часть смежной стены между кухней и комнатой убирается, превращая полученную площадь в единое пространство, либо небольшое разделение остается в виде тонких декоративных перегородок, стеллажей, ширм или арок. Такое оформление представляет собой квартиру-студию . В результате образовалась многофункциональная просторная зона в квартире, существенно увеличивающая удобство и комфорт этой части хозяйской жизни.
Далее продумываются остальные зоны – зона отдыха, кабинет, спальная комната. Необходимо произвести анализ: должны ли они полностью быть изолированы от гостинной зоны или быть встроены в нее и потребует ли это дополнительной капитальной перепланировки. Отметим, что дальнейшее зонирование можно произвести и исключительно дизайнерскими методами. Например, можно использовать разную напольную и стеновую отделку для зоны кабинета и зоны отдыха.
Добившись увеличения пространства с помощью перепланировки , ни в коем случае не стоит снова сокращать его громоздкой и массивной мебелью. Пусть это будут почти воздушные вещи и предметы, которые должны быть многофункциональными и удобными.
Планировка хрущевки 3 комнаты угловая. Идеи перепланировки
Итак, основные проблемы перепланировки и ремонта в хрущевке обозначены. Теперь о конкретных идеях перепланировки.
Однокомнатные хрущевки
Казалось бы, что можно придумать, имея в качестве исходных данных однокомнатную хрущевку? Оказывается, можно и санузел увеличить и сделать отдельную спальню, по крайней мере, сделать перепланировку более удобной вполне возможно.
Типовая планировка однокомнатной хрущевки
Типовая планировка однокомнатной квартиры в хрущевке – это коридор, ведущий к кухне и «арка» в гостиную. В некоторых сериях «арка» застраивалась, а проход в комнату располагался прямо напротив входной двери. Иногда проект предусматривал наличие кладовки.
В угловых квартирах на длинной стене гостиной располагалось еще одно окно.
| Вариант перепланировки | Описание перепланировки |
Это вариант перепланировки, где «арка» застраивается и превращается в обычный дверной проем, функциональность гостиной в этом случае возрастает, так как вдоль увеличившейся в длину стены можно поставить, например, диван. Переносится и дверь в туалет, за счет скругления пространства прихожая становится просторнее. Теперь здесь может удобно разместиться угловой шкаф. Кухня остается без изменений.
| |
Здесь можно увидеть, что полностью сносятся все межкомнатные перегородки, в том числе перегородки санузла. Пространство полностью перестраивается. Санузел расширяется за счет коридорчика, теперь здесь достаточно места, чтобы установить стиральную машину. Раковина, кстати, переносится на противоположную стену, что потребует подвода канализации. Перегородка между гостиной и кухней демонтируется, стена между ванной и кухней удлиняется за счет застраивания старого дверного проема: можно разместить полноценный кухонный гарнитур.
| |
Еще один вариант трансформации пространства за счет прохода. В этом случае меняется ориентация ванной комнаты – она немного увеличивается по площади, но основной упор сделан на увеличение площади кухни. Она частично объединяется с гостиной за счет широкого проема, в котором можно установить раздвижные перегородки.
| |
Здесь много внимания уделено местам хранения, причем находится место и для двухспальной кровати, она никак не отделяется от зоны гостиной, но находится в уютном закутке. Кухня объединяется с гостиной, устраивается отдельная ниша для холодильника. Обыграть кухонную, гостиную и спальную зоны можно с помощью дизайна. Обратите внимание на санузел. Вход в него переносится из прихожей в проход, благодаря чему убирается дверь из узкой прихожей.
| |
В этом варианте за счет переноса дверного проема в кухню расширен санузел, а точнее область ванны, часть стены скошена, благодаря чему получился полноценный дверной проем в гостиную. Пространство кухни существенно не оптимизировано.
| |
Здесь снесена перегородка между прихожей и гостиной. На этом месте стоит шкаф. Частично отсутствует перегородка между гостиной и кухней. Роль разделителя пространства выполняет барная стойка. Благодаря смещению столовой зоны из кухни в гостиную, кухня стала значительно просторнее. Кухонный гарнитур в этом варианте расположен буквой «Г» и занимает не только длинную стену, но и стену с окном. Пожалуй, надо отметить недостаток мест хранения и маленький санузел, который не перестраивается, но вместо ванны устанавливаются душевая кабина и стиральная машинка.
| |
Даже такую маленькую квартиру как однокомнатная хрущевка можно сделать двухкомнатной при необходимости.
| |
В угловых хрущевках, где в комнате два окна, вариантов перепланировки больше, точнее из одной комнаты можно сделать две полноценных светлых комнаты с естественным освещением. На этом плане видно, что перегородка между кухней и гостиной снесена, но возведена новая перегородка, которая теперь делит комнату на две части. В результате получилась отличная квартира с раздельными комнатами: гостиной-столовой и спальней. Зону санузла перепланировка не затрагивает. | |
Перепланировка двухкомнатной хрущевки с проходными комнатами.
Перепланировка 2-х комнатной хрущевки: быстро и простоПерепланировка хрущевки 2 комнаты может быть осуществлена самостоятельно, если у владельца имеются интересные идеи и желание обновить свою квартиру.
С чего начинается перепланировка 2-х комнатной хрущевки
Согласитесь, что во все времена именно двухкомнатные квартиры являлись, и будут самыми популярными. И именно поэтому в стандартных постройках многоэтажных домов, а чаще всего в домах, которые появились при Хрущеве много из квартир 2-х комнатные. А, как известно, так называемые квартиры хрущевки имеют довольно не большую площадь. В них коридоры и прихожие узкие, кухоньки миниатюрные, чаще всего санузел совмещен.
фото: spb-realtor.ru
На сегодняшний день, благодаря современным дизайнерским идеям перепланировка двухкомнатной квартиры хрущевки может значительно расширить в ней пространство. А что самое важное, это будет сделано, не только визуально, но так же и физически, за счет дизайнерских методов и приемов.
фото: www.stroy-podskazka.ru
Важно знать, что перепланировка хрущевки это весьма не простая процедура, потому, лучше всего воспользоваться помощью квалифицированного специалиста. Ведь при перепланировании очень часто необходимо сносить стены и сооружать новые, а для того, чтобы не нарушить нормативы строительства консультируйтесь и только тогда осуществляйте действия.
Первым делом, после того, как план будет составлен нужно обратиться в БТИ, для согласования проекта, только при условии утверждения можно приступать к ремонтным работам. Без подтверждающих документов о перепланировке из БТИ в будущем вы не сможете ни подарить, ни продать это жилье, потому посетить эту службу нужно в обязательном порядке.
фото: avatars.mds.yandex.net
Итак, создавать проект должен архитектор, у которого есть действующая лицензия, дающая ему на это право, а вот как будет выглядеть проект, зависит от владельца, вы можете предоставить ему свои идеи и пожелания.
Итак, для того, чтобы архитектор разработал четкий и верный план вашей квартиры с учетом перепланировки, необходимо предоставить ему свой вариант.
Рассмотрим 3 самых популярных и распространенных вида перепланировки 2 комнатной хрущевки:
первый вариант современный. Вы можете соединить кухню с комнатой, которая к ней прилегает. Таким образом, получите большую кухню-студию, ее можно будет применять и как гостевую комнату. Осуществляется это за счет демонтажа стены между этими двумя помещениями. Пространство расшириться и визуально и физически, еще очень будет хорошо смотреться, если сделать между ними красивый переход, а именно соорудить красивую арку.
фото: trestusc.ru
очень часто перепланировку в двушке осуществляют за счет ее коридора. Здесь мнения расходятся, но по утверждениям опытных дизайнеров лучше всего за счет комнаты, смежной с коридором и расширить территорию в таком случае можно за счет коридора. Для этого можно сделать перемещение стены между ними, а вот в коридоре организовать небольшую прихожую-гостинную.
фото: dekoriko.ru
Ну и самый популярный вариант это сделать из 2-х комнатной 3-х комнатную квартиру.
А особенно это целесообразно для семьи с двумя детками, которые со временем подрастут и захотят иметь собственную комнату. Сделать это не так сложно, в основном самую большую комнату делят перегородкой на 2 комнаты, а также соответственно монтируют 2 входа для каждой отдельно. Но, проблема может возникнуть в дневном свете, если в комнате, лишь одно окно, тогда нужно быть готовым к использованию в помещении без окна мощных осветительных приборов.
фото: avatars.mds.yandex.net
Помните, что все перепланировки в обязательном порядке должны пройти согласование с архитектором, а после утверждены специалистами БТИ, не пренебрегайте этим, чтобы не повлечь неисправимые последствия.
Перепланировка 2-х комнатной хрущевки фото:
фото: kakpostroit.su
фото: www.mirlandshaft.ru
фото: www.mirlandshaft.ru
фото: dekoriko.ru
фото: www.ifitnes.ru
фото: remont.spb.ru
фото: dizainvfoto.ru
P.
S. не забудьте поставить «лайк» и подписаться на наш канал!
Планировка квартиры бабочка. Планировка двухкомнатной квартиры в «панельном доме»
Квартиры в панельных домах стоят намного меньше, чем в других жилых строениях. Именно поэтому в старой «пятиэтажке» или «девятиэтажке» стены сделаны именно из панелей. Выполнить перепланировку в панельной квартире очень сложно, но возможно, если приложить некоторые усилия.
Самостоятельная перепланировка в большинстве случаев требует вмешательства профессионалов. Например, при необходимости встраивания дверных проемов в несущие стены. Если ремонт требует столь серьезных изменений в конструкции здания, то необходимо получить разрешение в специализированных учреждениях.
Планировка 2-х комнатной квартиры 83-й серии заключается в объединении спальни и кладовки с целью получения одного большого помещения. В панельной «двушке» 90-й серии кладовая комната отсутствует, поэтому для увеличения пространства используются только визуальные иллюзии.
Планировка двухкомнатной квартиры «распашонка», она же «бабочка», может быть представлена в двух вариантах. В первом случае жилище имеет маленькую кухню и прилегающую к ней лоджию, которую зачастую и используют для расширения полезного пространства. Во втором случае кухня имеет площадь порядка 14 кв. м, а сама квартира оснащена двумя небольшими лоджиями.
Существует планировка «двушки» под названием «усеченная трёшка». В данном случае кухня прилегает к кладовой комнате, с помощью которой можно увеличить площадь кухонного пространства до 12 м2. Также для этой цели можно использовать лоджию.
Планировка хрущевки 2 комнаты 44 м. Дизайн 2х комнатной хрущевки: проекты, перепланировка, лучшие фото идеи дизайна
Миллионы людей живут в малогабаритных квартирах с типовой планировкой. Мечтая о современном и удобном жилье, одни владельцы задумываются о переезде. Другие же устраивают ремонт в хрущевке 2-х комнатной, фото которой после проведенных работ едва ли выдает время постройки дома.
Благодаря огромному ассортименту строительных материалов и безграничным вариациям готовых дизайнерских решений, сегодня можно реализовать любые желания. Главное не пренебрегать советами специалистов.
Отличия хрущевской двушки от других квартир
Хрущевки — первые многоэтажные дома массовой застройки. Во времена СССР квартиры в них раздавали практически бесплатно, что решило вопрос острой нехватки жилья. Небольшая площадь, проходные комнаты, неудобное расположение дверей отличает их от “сталинок” и других домов. Есть и другие, не менее значимые недостатки: низкая шумоизоляция, невысокие потолки, маленькие прихожая и кухня, отсутствие балкона на первом этаже. На нынешнем рынке такая недвижимость мало ценится.
Несмотря на очевидные минусы, плюсы здесь тоже есть. В каждом жилище времен Хрущева Н. С. предусмотрены кладовки. Санузел обычно совмещен, что экономит место. А варианты дизайна таких помещений безграничны. Зачем покупать типовую мебель и жертвовать большой ванной, если даже в советской двушке реально осуществить любые идеи?
Преимущества перепланировки
Снести межкомнатные перегородки — самое простое решение.
В зависимости от того, каким планируется дизайн двухкомнатной хрущевки, объединяются комната и кухня, прихожая и зал, кладовка и спальня. Если ванная и туалет разделены, стену между ними стоит убрать. В результате увеличится полезное пространство, жилище визуально станет больше.
Перед сносом стен необходимо проконсультироваться со специалистом и обратиться в соответствующие службы для получения разрешения.
Убирать допускается только ненесущные опоры или необдуманные действия приведут к трагедии. Ломать всю стену не обязательно, иногда достаточно сделать широкую арку. Такой способ уместен для организации обеденной зоны в комнате, ведь маленькая кухня не позволит установить большой стол и стулья. Варианты ремонта 2-х комнатной квартиры зависят только от количества доступных финансов и фантазии.
Размеры
Планировка хрущевок, состоящих из 2 комнат, бывает 4 видов:
Тип планировки | Общая площадь | Особенности расположения комнат |
Трамвай | около 47 кв. | Две комнаты в такой квартире имеют одну, смежную стену. Гостиная обычно угловая. |
“Книжка” достаточно неудобная, как в первоначальном виде, так и в измененном. Так как комнаты следуют друг за другом, сделать радикальное перепроектирование помещения невозможно.
При входе в дом первое, что бросается в глаза — прихожая. В хрущёвке она маленькая, узкая и темная. Если увеличить дверной проем в комнате, коридор станет светлее и визуально больше. С этого обычно и начинается составление плана ремонта 2-комнатной квартиры. Что касается радикального сноса стен, чаще всего объединяют:
Перестройка малогабаритной квартиры 40 кв. м или другой площади не обходится без зонирования. Каждому члену семьи необходима личная зона в квартире. При этом нельзя уменьшать и без того маленький размер кухни. Рабочее место должно быть вместительным. Для разделения разных участков используются:
Раздвижные двери — лучшая альтернатива распашным. Они удобны в обращении и стильно смотрятся.
Эффективным способом зрительного увеличения пространства любой дизайнер назовет использование светлых оттенков. Но это утверждение нельзя воспринимать буквально, иначе ремонт в 2х комнатной хрущевке по фото будет напоминать больничную палату. То же касается и 1х, 3х комнатных квартир. Удачное сочетание цветов приведет к успешному обновлению интерьера.
Единственное строгое требование к выбору напольного покрытия — табу на темные оттенки. В домах небольшого размера пол является фоном для других предметов и не должен привлекать внимание. Лучшие цвета: серый, бежевый, молочный. Также уместна имитация фактуры дерева или сам натуральный материал. Ламинат, паркетная доска, линолеум, ковролин, плитка — любое покрытие эффектно дополнит дизайн, если учтены требования к цвету.
Чем ярче освещение в маленькой комнате, тем лучше. В дополнение к люстре рекомендованы точечные светильники, расположенные по периметру. Скрыть все неровности и дефекты на потолке поможет натяжной вариант.
Не менее выгодно смотрится многоуровневый верх.
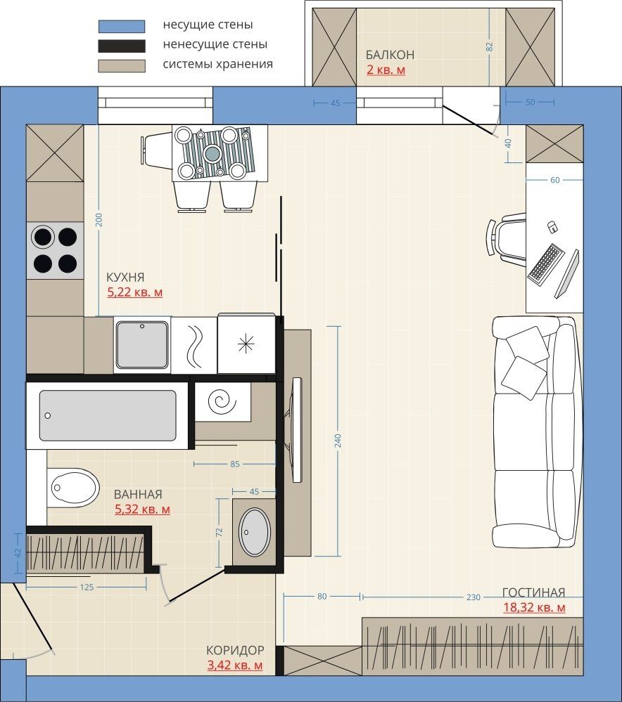
В спальных районах очень распространены девятиэтажки серии II-49 с малогабаритными квартирами. Разберёмся, что можно сделать с десятиметровыми спальнями и кухней 6 квадратов, и как найти место для гидромассажной ванны в хрущёвке.
Лишь две комнаты в типовой планировке изолированные. При этом существует несколько тамбуров и встроенный шкаф, которые усложняют планировку – их проще демонтировать. Недостатков хоть отбавляй: кухня 6 кв. м, супертесный раздельный санузел, вытянутые по форме комнаты-пеналы, отсутствие как таковой прихожей. Всё это делает типовую планировку непригодной для комфортной жизни.
Самый простой вариант – оставить существующую планировку, но избавиться от очевидных недостатков. Например, демонтируем тамбур и встроенный шкаф, сузим коридор и за счёт этого увеличим площадь детской и гостиной. Теперь все комнаты изолированные, а к гостиной примыкает небольшая гардеробная. Санузел объединим, чтобы выиграть хотя бы ту часть площади, на которой раньше стояла стена.
Перенос дверного проёма из кухни в гостиную – самый популярный вариант перепланировки в типовых домах. Так на самой кухне встанет дополнительная секция гарнитура, а санузел можно будет расширить за счёт коридора. В прихожей даже встанет шкаф для верхней одежды. Рядом с кухней можно обустроить только столовую или установить здесь же большой угловой диван. Тогда оставшиеся комнаты превратятся в симметричные спальни с гардеробной между ними.
При необходимости площадь кухни можно сократить до минимума, чтобы расширить санузел и установить гидромассажную ванну. Стену между меньшей по площади комнатой и коридором демонтируем – помещение станет проходным, но куда более просторным. Гостиная и столовая соседствуют. Но можно установить диван в столовой у окна и превратить комнату в гостиную. Спален будет две. Полноценная гардеробная не обязательно должна занимать много места. В этом варианте она угловая, закрывается шторой или раздвижными дверьми.
Принцип тот же – санузел объединим и расширим за счёт коридора, вход на кухню перенесём в гостиную.
Если сузить коридор, то в маленькой комнате встанет и обеденный стол, и угловой диван. Чтобы изолировать две дальние комнаты, предусмотрим скошенные дверные проёмы. В спальне развернём кровать к окну и в глубине обустроим гардеробную неправильной формы. В детской останется достаточно места для кроватки и гостевого дивана. А письменный стол установим на утеплённом и присоединённом балконе.
Стоит сразу оговориться, что согласовать такую перепланировку смогут только владельцы квартир на первом этаже или над офисами. Обычно мокрые зоны остаются на своих местах, но здесь кухню перенесём в меньшую по площади комнату. Сюда встанет очень вместительный П-образный гарнитур – идеальный вариант для любителей готовить. Если Изменить конфигурацию стены в коридоре, то встанет даже овальный обеденный стол. Все эти манипуляции необходимы, чтобы максимально расширить санузел. Теперь он просторный и комфортный, к тому же с окном – а это мечта многих. Входную дверь тоже предполагается перенести, чтобы обустроить прихожую.
В дальней части квартиры появятся довольно типовые гостиная и спальня с гардеробной между ними.
Подписывайтесь на канал и узнавайте свежие тренды в дизайне интерьеров. Если вы хотите видеть больше такого в своей ленте — ставьте лайк.
Автор: Павел Шелягин, основатель магазина дизайнерской мебели Филдс .
Перепланировка двухкомнатной хрущевки с проходной комнатой серии 1-464
Многие собственники малогабаритных квартир с проходной комнатой, хотят ее сделать изолированной. В этой статье мы покажем пример перепланировки такой квартиры в панельном доме эпохи Хрущева.
Для хозяев этой квартиры их жилье не новое, они живут в ней очень давно. Но жизнь вносит свои коррективы в требования к планировочным решениям их квартиры.
Квартира находится на 4 этаже пятиэтажного жилого дома. В ней две жилых комнаты, одна из них проходная. Панельный дом серии 1-464.
Варианты перепланировки квартиры серии 1-464
У семьи возникла потребность сделать проходную комнату – изолированной.
Архитектор Проектного бюро «Тектоника» предложил несколько вариантов перепланировки, с учетом этого требования.
Первый вариант, предусматривает устройство спальни на площади общей комнаты, увеличение коридора за счет жилой комнаты и организацию входа из коридора во вторую жилую комнату. Согласно строительным нормам, гостиная комната не может быть без окна (без естественного освещения), поэтому в техническом паспорте на квартиру эта зона будет названа коридором. Этот вариант дает возможность собираться всей семье для отдыха на площади коридора и фактически использовать коридор как гостиную.
Второй вариант, предусматривает устройство спальни со встроенным шкафом на площади общей комнаты, организацию коридора и устройство проема для второй спальни.
Третий вариант, предусматривает устройство спальни на площади общей комнаты, организацию коридора на площади общей жилой комнаты и устройство проема для второй спальни.
Проект перепланировки
После согласования планировочного решения, выполнена план-схема перепланировки для получения разрешения на перепланировку Администрации района. Как получить разрешение на перепланировку, вы можете почитать в нашей статье.
Все эскизы планировочных решений, дизайн проект не является проектной документацией на перепланировку. Получение Решения администрации района является основанием для разработки проектной документации.
Все три варианта планировочных решений, предусматривают изменение в несущих конструкциях здания. Проектом предусмотрено усиление несущих конструкций металлическими рамами.
Согласно перечню работ, выполнены необходимые разделы проекта. Ниже приводим фрагмент строительного проекта, необходимого для согласования и ввода квартиры в эксплуатацию.
Проект успешно прошел Государственную экспертизу. Проектное бюро «Тектоника» выполнило прочностные расчеты конструкций, которые доказывают реализуемость данного проектного решения.
В этом проекте мы создали новое пространство, которое отвечает изменившимся потребностям хозяев квартиры.
При заказе услуги перепланировки «под ключ» в Проектном бюро «Тектоника» вариантные планировочные решения выполняются бесплатно.
лучшие варианты для 1, 2 и 3-х комнатных квартир
Хрущевки знамениты своими скромными размерами. Маленькие кухни, не очень широкие коридоры, небольшая площадь жилых помещений и санузлов, невысокие потолки, наличие проходных комнат — все это, по сути, собирательный образ квартиры в панельном, блочном или кирпичном доме хрущевской постройки. Конечно, в квартире с подобными параметрами особо не разгуляешься, и многие собственники делают все, чтобы вырваться за рамки типичной советской планировки и сделать жизнь в такой квартире комфортнее. Чаще всего перепланировка хрущевки становится оптимальным вариантом решения проблемы. Однако оптимальным не значит простым. Впрочем, если четко соблюдать все правила, перепланировка пройдет гладко и не займет слишком много времени.
О том, какую перепланировку можно сделать в хрущевке и что для этого нужно, расскажем в статье.
Что нужно знать о перепланировке
Согласно Жилищному кодексу РФ, перепланировка комнаты или нежилой площади представляет собой изменения конфигурации помещения[1]. А они должны вноситься в план квартиры, который включается в ее технический паспорт. При этом просто сделать ремонт и «нарисовать» новые линии взамен старых в плане БТИ не получится. Прежде чем приступать к строительным работам, их необходимо согласовать с уполномоченными органами.
Предположим, что собственник все же решился на перепланировку и готов начинать процедуру. Первым делом ему нужно убедиться, что запланированные изменения действительно считаются перепланировкой и требуют одобрения госорганов. Косметический ремонт и другие работы, не касающиеся конструктивных изменений, можно делать без специального разрешения. Выравнивание и облицовка стен, поклейка обоев, чистовая отделка потолка и полов, замена старых окон и дверей на новые, прокладка труб и электропровода, а также замена сантехники к перепланировке не относятся.
К тому же стоит иметь в виду, что есть ряд запрещенных работ, которые, как можно догадаться, не согласуют ни при каких обстоятельствах. Логика наложения табу здесь предельно проста: некоторые работы могут создать опасность для дальнейшей эксплуатации жилого дома или как минимум привести к ухудшению условий проживания людей. Так, владельцу квартиры точно не разрешат:
- увеличивать нагрузку на стены и перекрытия сверх допустимой нормы;
- подключать систему теплого пола к общедомовому отоплению;
- устанавливать радиаторы и другие системы обогрева на лоджиях или балконах;
- использовать площадь вентиляционной шахты;
- устраивать лоджии выше первого этажа;
- присваивать технические помещения, чердаки и другое общедомовое имущество;
- объединять комнаты с газифицированной кухней;
- изолировать стояки отопления и водоснабжения, не открывая доступ к ним;
- демонтировать пороги в мокрых зонах.
Если собственнику удалось убедиться, что задуманный им ремонт не запрещен и согласовывать эти работы все-таки нужно, можно действовать дальше.
Теперь необходимо разобраться, понадобится ли для согласования перепланировки проект. Выяснить это помогут профессионалы из бюро, специализирующегося на разработке проектной документации.
Важно
Допуском к проектной работе является членство компании в СРО (саморегулируемой организации) проектировщиков. Перед заключением договора с бюро не лишним будет проверить и информацию о самой СРО в государственном реестре[2]. Если в графе «статус» там стоит пометка «исключен из реестра», то выданный этой организацией допуск считается недействительным.
Согласовать перепланировку вполне реально и без проекта — по эскизу. Безусловно, это куда дешевле и проще. Правда, так можно поступить лишь в отдельных случаях, например, если хозяин жилья решил:
- устроить гардеробную;
- объединить спальню с гостиной, убрав ненесущую перегородку;
- разграничить гостиную на несколько зон с помощью легких перегородок;
- расширить дверной проем в ненесущей стене и установить раздвижную дверь;
- перенести раковину в пределах «мокрой» зоны;
- оформить арку в ненесущей стене.

И все же это скорее частности — в большинстве случаев при согласовании перпланировки без проекта не обойтись. Чтобы специализированная компания могла приступить к его разработке, ей понадобится технический паспорт жилья. Документы на квартиры в столичных домах хрущевской постройки хранятся в МосгорБТИ. К слову, у некоторых проектных мастерских есть полномочия на то, чтобы запрашивать оттуда документацию. Тогда собственник может освободиться от необходимости «добывать» техпаспорт самостоятельно.
Далее для получения разрешения жилищной инспекции или другого согласующего органа нужно подготовить пакет документов. Обычно в него входят собственно проект, техническое заключение о возможности перепланировки, договор на авторский надзор, акты на скрытые работы, согласие от всех собственников квартиры. К этим документам прилагается и заявление о согласовании от владельца или его законного представителя, а также документы на жилье.
Подать пакет документов в Мосжилинспекцию заявитель может лично через МФЦ либо в электронном виде через портал госуслуг[3]. А можно, опять-таки, поручить это дело специалистам из проектного бюро. Ведь зачастую такие компании занимаются не только составлением проектов и техзаключений, но и согласованием перепланировки под ключ — в эту услугу входит и взаимодействие с госорганами.
Порядок согласования перепланировки в хрущевке будет одинаков практически при любом раскладе. А вот варианты самого ремонта могут различаться. Прежде всего это зависит от того, сколько комнат в квартире.
Перепланировка в однокомнатной хрущевке
Прежде чем говорить о возможных вариантах внесения изменений в хрущевках, стоит сказать пару слов об особенностях этих квартир. Несмотря на развитие жилищного строительства, до сих пор чуть ли не каждая десятая квартира в нашей стране — панельная хрущевка. И большая их часть — однокомнатные и двухкомнатные. Если трехкомнатные хрущевки составляют примерно 15% от их общего количества, то четырехкомнатные вообще большая редкость.
Логично, что перепланировка однокомнатной или двухкомнатной хрущевки — явление наиболее распространенное.
Несмотря на то что такие типовые советские квартиры имеют множество недостатков вроде уже упомянутых низких потолков и тесного совмещенного санузла, перепланировка однокомнатной хрущевки чаще всего проводится с целью именно расширить пространство. Как правило, «дробить» и без того небольшую площадь, возводя перегородки, у собственников желания не возникает. У однокомнатных хрущевок есть одна особенность — внутри таких квартир практически во всех случаях нет несущих стен, они смежные со стенами соседних квартир. Это значительно облегчает процесс выполнения перепланировки и, конечно же, ее согласования, если предполагается, что в ходе намеченных работ изменятся внутренние границы. Трансформировать однокомнатную квартиру можно несколькими способами.
Например, перепланировка 1-комнатной хрущевки часто сводится к элементарному сносу перегородки между кухней и комнатой. Однако такой ремонт, по сути, запрещен на законодательном уровне, если на кухне стоит газовая плита: согласно нормативным документам, кухня не может быть увеличена за счет площади жилой комнаты (и наоборот), а газифицированная кухня должна быть изолирована от остального пространства[4].
В некоторых случаях эти правила можно обойти, если сделать условную, то есть раздвижную, перегородку или заменить газовую плиту на электрическую.
Полезный совет
Расширить однокомнатную квартиру можно, убрав кладовки и встроенные шкафы. Это позволит не только увеличить полезную площадь, но и даст возможность зонирования.
Наиболее часто встречающийся вариант перепланировки — превращение однокомнатной хрущевки в студию. Собственник получает одно просторное помещение, объединяющее и кухню, и прихожую, и спальню. Правда, в этом случае, как уже было сказано выше, придется сначала заменить газовую плиту на электрическую. Разумеется, на пути к реализации этой задумки владельца могут быть и иные препятствия. Чтобы не питать лишних надежд, стоит заранее проконсультироваться в проектном бюро.
Рис. 1. Перепланировка однокомнатной хрущевки в студию.
Не всем владельцам по душе идея проживания в одной большой комнате «без границ», однако большинству все равно хочется изменить конфигурацию квартиры.
Так, многие желают расширить или разделить санузел либо сделать просторнее только кухню. Такие варианты перепланировки 1-комнатной хрущевки тоже вполне допустимы — площадь ванны и кухни в этом случае можно увеличить за счет площади коридора.
Рис. 2. Расширение кухни и санузла за счет коридора.
Есть и такие хозяева, которым для комфортного проживания в квартире, наоборот, не хватает помещений. В этом случае большую комнату можно разделить на две: на маленькую спальню и гостиную, например. Преобразовать пространство квартиры, при этом не превратив ее в «скворечник», реально: для этого нужно грамотно расположить новые стены — по диагонали.
Рис. 3. Разделение одной комнаты на две в хрущевке.
Как видно, если речь заходит о перепланировке однокомнатной квартиры в доме хрущевской постройки, у собственника жилья может возникнуть много препятствий на пути к реализации дизайнерских фантазий. Между тем специалисты проектных мастерских, имеющие серьезный опыт составления проектов для трансформации столь скромного пространства, знают, что делать в таких ситуациях.
Перепланировка двух- и трехкомнатных квартир
Конечно, вариантов изменения конфигурации в двушках и трешках намного больше. Однако и здесь есть свои нюансы. Так, одна из главных проблем собственников двухкомнатных хрущевок — смежные комнаты. Перепланировка хрущевки, две комнаты которой фактически связаны друг с другом, — дело непростое. Впрочем, такая планировка настолько неудобна, что собственники зачастую даже готовы пожертвовать частью полезной площади — лишь бы изолировать жилые зоны.
Иногда, для того чтобы отделить зал от спальни и сделать дополнительную дверь, приходится удлинять коридор. При этом жилая комната теряет часть своей площади. Зачастую, если, конечно, пространство позволяет, в получившемся простенке организуют мини-кладовую или гардеробную.
Рис. 4. Разделение смежных комнат в двухкомнатной хрущевке.
При определенных условиях потерю полезной площади можно возместить, устроив французское окно, ведущее на балкон, или частично объединив гостиную с кухней.
Во втором случае часто делают еще и арку либо барную стойку. Еще один вариант — использовать раздвижные перегородки.
Если есть необходимость в организации дополнительной спальни, можно превратить двухкомнатную хрущевку в трешку. Главное, чтобы расположение окон было подходящим, иначе проект могут не согласовать.
Собственникам трехкомнатных квартир свободного жилого пространства обычно хватает — в трешках редко делают дополнительные комнаты. Гораздо чаще владельцы таких квартир недовольны маленькой площадью туалета и ванной, потому перепланировка 3-комнатной хрущевки сводится к расширению санузла. Чтобы увеличить «мокрую» зону, как правило, либо совмещают ванную и туалет, либо используют часть коридора.
Это, безусловно, не все варианты перепланировки трехкомнатной хрущевки, есть и другие, хоть и менее популярные. Например, в такой трешке можно совместить кухню и гостиную, превратив это пространство в своеобразную обеденную зону; организовать гардеробную, «выкроить» еще одну комнатку или формально совместить зал с балконом либо лоджией, установив между ними перегородку из стеклопакетов.
Все зависит от фантазии хозяина квартиры, степени законности задуманного и профессионализма экспертов выбранного проектного бюро.
Квартиры в домах хрущевской постройки считаются не самыми удобными из-за своих размеров и планировки. Но исправить это возможно — оптимальный вариант перепланировки хрущевки обязательно найдется. Правда, придется учесть немало факторов, чтобы ремонт был законным. Ведь, если речь заходит о перепланировке, миновать процедуру согласования не получится. К тому же значение имеет и количество комнат в квартире. Собственники однушек, к примеру, в отличие от владельцев двух- и тем более трехкомнатных квартир, в некоторой степени ограничены в своих фантазиях относительно перепланировки. Как бы то ни было, многое зависит и от подготовки к ремонту. И лучше всего начинать изменения квартиры со столь специфическим типом планировки с обращения в проектное бюро.
Перепланировка двухкомнатной хрущевки из смежной в раздельную — LawsExp.com
Содержание статьи
Во времена Хрущева строились не совсем удачные квартиры в жилых домах.
Площади очень маленькие, не продуманная планировка. Основная задача тех времен заключалась в том, чтобы каждую семью обеспечить отдельной жилплощадью. Что касается комфорта проживания, то он в задачи совсем не входил. Достоинство подобных квартир заключается в том, что их легко перепланировать, так как несущие стены наружные, а внутренние стены – это перегородки, которые можно сносить или перемещать без снижения несущей способности всего здания. Несмотря на это, необходимо иметь проект на перестройку и согласование с соответствующей организацией. Дело в том, что любые изменения в конструкции здания должны регистрироваться.
Что такое перепланировка и как ее оформить
Любое изменение конфигурации стен и перегородок в квартире считается перепланировкой. Что касается несущих стен, то их трогать нельзя вообще. Если имеются ненагруженные стены или перегородки, то здесь все не настолько серьезно, но составлять проект нужно обязательно, после чего его придется согласовать и лишь затем можно приступать к осуществлению задуманного.
При этом, существуют варианты переделок, которые не смогут согласовать ни при каких условиях:
- Расширение площади таких помещений, как кухня, ванная и туалет возможно лишь за счет технических помещений. Над жилыми комнатами их располагать запрещается. В данном случае можно уменьшить площадь коридора, встроенного шкафа, прихожей и т.д. Поэтому, имеются спорные варианты некоторых перепланировок. На фото ниже указаны спорные зоны.
Обозначенный красным фрагмент практически находится в коридоре, но документы БТИ указывают, что это жилая площадь. Если в таком варианте подать документы на перепланировку, то их не возьмут. Чтобы не ссориться с законом, нужно сначала поставить перегородку, которая отгородит коридор и в таком виде подается проект на увеличение площади ванной.
Расширяя площадь кухни, нельзя делать:
- Расширять за счет санузла.
- В случае расширения кухни за счет жилой площади, то на кухне нельзя устанавливать сантехнические принадлежности и кухонную плиту.

- Если на кухне имеется газ, то совмещать с жилой комнатой ее нельзя.
Этот пункт можно обойти, если установить двери любой конструкции, в том числе и раздвинутые или двери гармошку.
Однокомнатная хрущевка: перепланировка
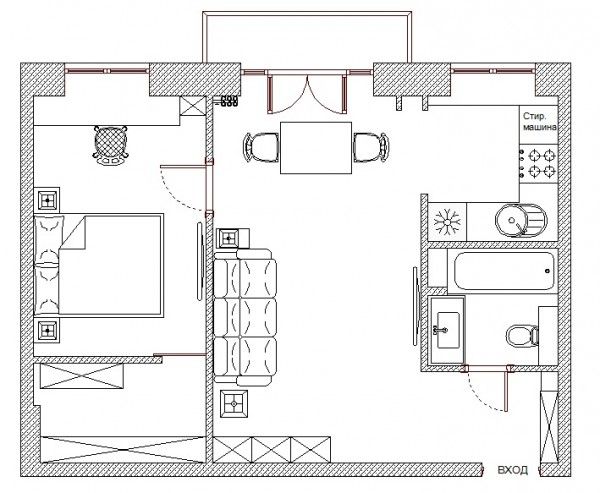
Молодые семьи, как правило, покупают однокомнатные квартиры. Однокомнатную хрущевку легко переделать в квартиру студию, что является для молодых людей отличным вариантом. В таком случае, избавляются от перегородок, отделяющую комнату и кухню, а также прихожую.
В том и другом случае, такое помещение, как санузел, остается не тронутым, поскольку его перемещать нельзя, если это не первый этаж.
На фото выше видно, что перепланировка частично коснулась и санузла, за счет перемещения двух стен на значительное расстояние. Это стена, обращенная в зал, и стена, отделяющая прихожую. За счет незначительного увеличения площади удалось поместить стиральную машинку.
В малогабаритных комнатах всегда ощущается недостаток места, когда требуется установить современную бытовую технику. Хотя прихожая и получается не большая, зато в комнате достаточно места и можно установить гардеробную.
На другом фото представлен еще один вариант перепланировки 1 комнатной хрущевки. Этот вариант отличается тем, что объединили кухню и коридор. Двери в комнату смещены дальше от входа, что дало возможность, более оптимально использовать жилое пространство. В результате такого дизайна появилось место в коридоре под шикарный встроенный шкаф. Это не повлияло на функциональность кухни, а ее площадь увеличилась на 0,2 метра квадратных.
В последнее время многие жильцы практикуют еще один способ увеличения жилой площади – это совмещение лоджий и балконов. Но для этого нужно тщательно произвести утепление стен балконов и лоджий, а также, провести туда отопление. В результате можно получить еще одну комнату с оптимальной температурой, где можно разместить, например, рабочий кабинет.
Существует еще один вариант перепланировки однокомнатной хрущевки, расположенной в кирпичном доме. Здесь очень маленькие площади санузла и кухни, но перегородки размещены стандартно.
В данном случае, желательно отказаться от ванны в пользу душевой кабинки. Это позволит оптимизировать полезное пространство в санузле, расположив правильно сантехнику и поместив туда стиральную машину. При этом, одна из стенок получается скошенной, а площадь кухни не значительно, но увеличивается, хотя площадь прихожей несколько уменьшается.
Жилую площадь можно увеличить за счет расширения на балкон, утеплив его соответствующим образом. На балконе можно установить шкаф и рабочий стол. Подобная перепланировка довольно актуальна, если семья состоит из пяти человек: 3-х детей и 2-х взрослых. При этом, желательно установить одну двухэтажную кровать для детей. На очередном фото можно увидеть подобный вариант переделки жилой квартиры.
К сожалению, не всем по душе иметь квартиру-студию, как не все воспринимают санузел, где совмещены ванна и туалет.
Многим не нравится отсутствие стен, когда нельзя посидеть на кухне незамеченным для окружающих, тем более, что это актуально при наличии детей, да еще в однокомнатной квартире.
В таком случае, перепланировка осуществляется за счет переноса перегородок, в зависимости от приоритетов. Боковую стенку прихожей нужно сдвинуть в сторону комнаты, а лицевая стенка подвинута, почти вплотную к двери в санузел. После подобных действий увеличивается площадь прихожей и теперь появляется возможность установки в прихожей встроенного шкафа и гардеробной.
Естественно, что площадь комнаты уменьшается, поэтому придется компенсировать недостаток площади за счет кухни. Несмотря на это, после переноса стены ближе к двери ванной, образовалось место для холодильника. В результате подобной перепланировки столовая часть кухни сдвинулась в комнату. Чтобы оптимизировать пространство, следует установить двери раздвижные или двери-гармошку.
При этом, комната получила Г-образную форму, где можно установить перегородку, чтобы разделить комнату на взрослую и детскую зону.
По такому же принципу, можно из однокомнатной квартиры сделать двухкомнатную. Это имеет серьезное значение при наличии детей.
Существует еще один вариант перепланировки 1 комнатной квартиры, но только с другой изначальной планировкой. В данном случае переделка минимальная и сводится к обустройству перегородки из гипсокартона. Ее устанавливают так, чтобы она занимала не больше половины промежутка, чтобы во второй части было доступно освещение.
Как вариант, предлагается перепланировка угловой однокомнатной хрущевки, в квартиру студию с выделением спального места. В этой части квартиры может поместиться лишь кровать и шифоньер, но имеется один существенный плюс: спальня получается изолированной.
Двухкомнатная хрущевка: переделка
В постройках тех лет двухкомнатных квартир гораздо больше, чем однокомнатных, но проблемы у них одни и те же: малые площади и не продуманное расположение комнат, с наличием проходных помещений.
Если заняться перемещением стен, то большинство проблем оказываются решаемыми. Например, имеется возможность разделения смежных комнат, после чего можно из двухкомнатной квартиры сделать и трехкомнатную. Для этого достаточно смонтировать еще одну перегородку, которая отделит комнату от коридора. В результате появляется дополнительная полезная площадь, где можно разместить гардеробную и кладовку. Полученное таким образом второе помещение более длинное и более узкое, разделяется на две части, посредством перегородки из гипсокартона.
На фото ниже представлен второй вариант неудачного планирования жилого пространства тех времен. Здесь, чтобы попасть во вторую комнату, необходимо пройти через первую. Планировка настолько неудачная, что, мало того, что малые площади, еще и появляются и мертвые зоны, что искажает функциональность комнат. Иногда, в торце второй комнаты располагают кладовку, которая не может быть использована в полной мере.
После переделки по этому варианту, ванна приобрела квадратную форму, а прихожая соединилась с первой комнатой.
В данном случае, она выполняет роль гостиной, из которой сформирован вход в кухню. Следующее, более дальнее помещение разделено на две спальни. Перегородка между двумя спальнями смонтирована таким образом, чтобы осталось место для небольших гардеробных одной и другой спален.
Обычную двухкомнатную хрущевку в панельном доме, возможно превратить в квартиру студию, объединив гостиную и кухню. Основная задача подобной переделки состоит в том, чтобы сместить входные двери. За счет этого большая прихожая послужит в качестве гардеробной. При этом, объединяются туалет и ванна, а кухня и гостиная объединяются за счет частично разобранной перегородки.
Если имеется желание, то вторая комната может быть разделена на две части, за счет перегородки из гипсокартона, что позволит разделить рабочую и спальную зоны. Чтобы в спальню проникал свет, перегородку достаточно поднять на высоту не больше 1,5 метра.
Достаточно интересный вариант переделки 2-х комнатной квартиры в 3-х комнатную.
Здесь прихожая немного скошена, что дало возможность увеличить площадь санузла, а перегородка, которая установлена между кухней и комнатой, частично удаляется. Вторая комната разделяется на 2 части, площадь которой увеличивается за счет кладовки и стенного шкафа. В результате образовались 2 спальни, а так как квартира угловая, то в каждой из спален имеется свое окно.
Коридор принял интересную форму, так как его стены располагаются по диагонали. В результате получается неплохой вариант, хотя функциональность коридора значительно снижена.
Трехкомнатная хрущевка: изменение расположения комнат
Хрущевки серии 11-57.3.2 отличаются очень маленькими размерами туалета и ванной комнаты. Исходя из этого, переделка квартиры просто необходима, если учесть, что на планете уже 3-е тысячелетие и наличие современной сантехники и бытовой техники указывают на такую необходимость. Чтобы оптимизировать жилое пространство, необходимо убрать простенок между ванной и туалетом.
Часть коридора, которая примыкает к санузлу, отгораживается стеной, где располагают двери в санузел. Единственная проблема – это усиление гидроизоляции в этой части, где раньше находился коридор.
Первоначальная планировка не позволяла установить шкаф. В небольшом отрезке коридора, который отошел под ванную, был небольшой шкаф, но его размеры настолько малы, что позволяет в него прятать лишь малогабаритные вещи. Поэтому, приходится подвинуть стену одной из спален, чтобы на освободившееся место поместился гардероб.
Для объединения кухни и гостиной, необходимо избавиться от части стены. При этом, необходимо провести усиление соответствующих несущих стен и перекрытия. Поскольку плита на кухне газовая, то нужны двери. Как вариант, можно установить раздвижные.
Возможен и другой вариант ремонта, позволяющий увеличить площадь санузла, а также превратить какую-нибудь комнату в гостиную-столовую, из которой возможен выход на кухню. Заодно, нужно сформировать две спальни.
Для этого, удаляются простенки между ванной и туалетом, а часть коридора изымается под санузел. Теперь вход в кухню будет со стороны гостиной, с противоположной стороны гостиной формируется вход во вторую спальню.
Что касается дверного блока, размещенного во второй спальне, то его необходимо демонтировать, а проем заложить.
Следующий вариант перепланировки рассчитан на то, чтобы увеличить полезную площадь санузла и кухни. Что касается санузла, то его расширяют классическим способом: удаляют перегородку между ванной и туалетом, а также подравнивают стенку. Кухня расширяется за счет комнаты. Такое решение позволяет сформировать место для отдыха, где можно установить диван и телевизор.
Получается, что можно таким образом разделить проходные комнаты. Хотя площадь и уменьшилась, зато они стали более функциональными. На освободившихся площадях можно разместить гардеробные комнаты.
Четырехкомнатная хрущевка: переделка
Это настолько неудачная планировка, что при увеличении количества жилых помещений проблем становится все больше и больше. Наличие опять-таки маленькой кухни и маленького санузла, с проходными комнатами, усугубляет общую картину. На фото ниже один из самых непродуманных вариантов. Здесь изображено то, что было до переделки.
Несмотря на то, что эта квартира имеет относительно большую прихожую, она (прихожая) используется не в полной мере, а имеющийся нормальный угол, занят кладовой.
Проблема связана еще и с тем, что в прихожую выходит семеро дверей. Предлагается вариант переделки, когда все комнаты перепланировывают в правильную форму, типа квадрата. Такой подход позволяет проще использовать функциональные возможности квартиры в целом. Две комнаты используют под столовую и под гостиную, а две спальни так и остаются не тронутыми. Вход в выгороженную гардеробную комнату из прихожей.
Ванна и туалет остаются не совмещенными, но их площадь увеличена за счет выравнивания стен.
Площадь, которая ранее занималась коридором, требует усиления гидроизоляции.
Заключение
Хрущевки давно уже себя изжили не только с технической точки зрения, но и с моральной. Кроме этого, современная планировка учитывает недостатки прошлого и не допускает подобных просчетов. Те, кто до сих пор живет в хрущевке, ежеминутно и ежесекундно думают, как быстрее осуществить ремонт, с целью избавления от этих крошечных кухонь, туалетов и ванн, а также проходных комнат, где не оптимально используется полезная площадь маленьких комнат.
При этом, следует учитывать, что существует еще одна проблема, не менее серьезная – это организация проекта перепланировки и его утверждение. К великому сожалению, бюрократы не хотят идти навстречу хозяевам хрущевок. Подобное решение получить весьма сложно и хлопотно, а то и совсем дорого. В связи с этим многие владельцы квартир улучшают свою жизнь самостоятельно и переделывают свои квартиры втихую. При определенных условиях, когда придется продавать квартиру, придется заплатить и штраф за самопроизвольную перепланировку. Если все сделано без нарушений технологии, то паспорт на квартиру переделают, естественно за отдельную плату.
Но здесь кроется и другая проблема, связанная с тем, что часть владельцев квартир, при проведении перепланировки все же нарушают требования и нормы, что приводит иногда к плохим последствиям.
Исходя из этого, можно сделать заключение, что любые работы желательно согласовать с соответствующими организациями и получить на это разрешение, иначе можно иметь дело с законом, что повлечет за собой административную или уголовную ответственность.
Кто из нас не жил в квартирках с тесными прихожими, маленькими кухнями, крошечными санузлами и неудобными по расположению комнатами? Миллионы семей до сих ютятся в таком жилье, стремясь оптимизировать в нем каждый квадратный сантиметр. Перепланировка 2 комнатной хрущевки станет самым смелым и кардинальным решением в этой задаче.
![]()
Введение
Маленькая площадь, конечно, доставляет определенные неудобства. Зато стоит недорого, и представляет собой отдельное жилье с раздельными комнатами, что неоценимо для молодых семей со стартовыми финансовыми возможностями. К тому же существуют десятки способов преображения тесных метров в просторный, стильный и современный дом.
Результат частичного сноса перегородок
Даже в 45-метровой хрущевке можно воплотить любые дизайнерские задумки, приложить фантазию и превратить помещение в уютную и модную квартирку, где каждый уголок будет функционально оправданным. Применение технологических приемов позволит эргономично разделить площадку, зонально выделить важные области, не утяжелив общий интерьер. А еще придумано множество способов зрительного увеличения пространства за счет выбора грамотных стройматериалов и расцветок в отделке.
Этот этап зачастую задерживает собственников из-за пугающей волокиты и кажущейся трудности. Однако, если с умом взяться за дело, обратиться за помощью к специалистам и настроиться на позитивный лад – процедура пройдет легко и безболезненно.
Что такое хрущевка
Откуда взялось такое неблагозвучное название? Оно совсем не ассоциируется с хорошим жилищем, за которым стоит большая очередь. А ведь когда-то получение такой квартиры считалось верхом удачи, а событие отмечалось масштабнее, чем свадьба или новый год.
Один из домов с тесными квартирками
В период с 50-80 годы прошлого века было отстроено более трех сотен миллионов квадратных метров такого жилья. Это квартиры в однотипных панельных или кирпичных строениях, чаще всего 4-х или 5-этажных.
Именно его фамилию и трансформировали в название тех советских новостроек. Тогда презрительного отношения к небольшим квартирам с отдельной кухней и туалетом не было. Люди с удовольствием выезжали из коммуналок в собственные площади и радовались невероятному простору.
Варианты расположения комнат
Светлые оттенки в декоре
Несмотря на сотни отстроенных квартир, планировка в них всегда одинаковая с площадью от 40 до 48 м². Единожды утвержденные планы применялись по всему СССР на территории 16 государств. Все хрущевки объединяют маленькая площадь кухни (6-8 м²), санузлов (2-3 м²), узкие коридоры, небольшие комнаты (либо одна большая, вторая крошечная) и низкие потолки (2,5-2,7 м).
Выделяют несколько видов планировок, причем народ для каждой из них придумал «бытовое» название.
«Распашонка»
Чертеж плана напоминает детскую рубашку, где рукава – это одинаковые по размеру комнаты, а в центре располагаются кухня и санузлы. Вход в комнаты осуществляется из прихожей, из нее же попадают в ванную и туалет, а в кухню ведет узкий коридор. Это самый удачный вариант расположения спальни и гостиной, которые полностью изолированы друг от друга;
Зонирование кухонной зоны в студии
Самым распространенным вариантом перепланировки в такой квартирке является создание кухни-студии.
В результате получается просторная гостиная-столовая без узкого коридорчика и лишних стенок. Также востребовано объединение санузлов, что делает их площадь более просторной и избавляет небольшой коридор от обилия дверей.
«Мини-улучшенка»
Это квартира с узким горизонтальным коридором в который выходят все двери остальных помещений. Обычно вход налево (или направо) приводит в большой и просторный зал, а прямо напротив входной двери располагается небольшая спальня. Правее по этой же стенке находится вход в кухню, а справа, напротив зала, располагаются кладовка, туалет и ванная.
В такой квартире обычно увеличивают площадь кухни за счет демонтажа кладовой и сдвига на ее место санузлов с их объединением. Комнаты итак изолированные, что очень удобно для семей с детьми. Любители больших пространств сносят перегородку между кухней и спальней, превращая эту площадь в огромную гостиную.
«Книжка»
Это самый неудачный вид планировки с небольшой площадью и смежными комнатами, одна из которых проходная.
Из маленькой прихожей вы попадаете в небольшой зал, а из него ведет вход в примыкающую комнату, которая по площади совсем крошечная. Направо из прихожей ведет узкий коридор в кухню, с дверями в туалет и ванную.
«Книжка» с кухней-студией
В спальне иногда присутствует встроенный шкаф, который многие предпочитают демонтировать, чтобы увеличить размер комнатки. Чтобы изолировать это помещение, многие жертвуют метрами зала, продлевая прихожую вплоть до спальной стены, где прорубается проход.
В такой квартире тоже можно сделать кухню-студию, или объединить санузлы. Если плита газовая, тогда потребуется установить раздвижные перегородки с плотным притвором.
«Трамвай»
В такой квартире обычно обе комнаты достаточно большие, что дает простор и почву для фантазии дизайнерам. Если из прихожки повернуть налево (или направо), вы попадаете в коридор до кухни, из которого ведут двери в санузлы. Напротив входной двери находится вход в гостиную, а из нее направо (налево) в спальню.
Квартира типа «трамвай»
Одинаковые прямоугольные жилые комнаты при взгляде сверху напоминают вагоны трамвая. Как и в предыдущем варианте, здесь можно возвести перегородку, продлив коридор на всю ширину зала, завершив его шкафом-купе. Так помещения станут изолированными, а в квартире появится вместительная кладовая.
По желанию здесь обустраивают студию, с частичным или полным сносом стенки между гостиной и кухней. В этом случае отпадает необходимость изолировать спальню. Вход в санузлы переносят в прихожую, а на поверхность, где раньше были их входы, обычно вешают телевизор или устанавливают мебельную стенку.
Правовые аспекты перепланировки
Перед началом работ нужно хорошо разобраться, что разрешается, и что запрещено при перепланировке. Несмотря на то, что перегородки в хрущевках не выполняют несущих функций, переносить их в куда вздумается не разрешается.
Согласование изменений внутреннего плана
- Объединение туалета и ванной комнаты.
Захват части площади коридора в их пользу - Расширение комнаты за счет коридора
- Объединение кухни с жилой площадью (если там установлена электроплита)
- Перенос дверных проемов в стенах без несущей функции
- Демонтаж антресолей, кладовых, встроенных шкафов
- При утеплении лоджии допускается демонтаж части стены над окном
- Объединение кухонной зоны с газопроводом или проточным обогревателем с жилой комнатой (возможна установка пластиковых или деревянных перегородок)
- Увеличение площади кухни, коридора и санузлов за счет жилых метров
- Нельзя полностью сносить внешнюю стену даже при капитальном утеплении балкона
- Действия, которые исключат доступ к инженерным коммуникациям
- Демонтаж вентиляционных отсеков
- Объединение двух квартир на соседних этажах путем частичного или полного демонтажа перекрытия между ними
- Пристраивание к квартирам на 1 этаже балконов и иных помещений
- Постройка межкомнатных стенок из тяжелогрузных материалов
Популярные варианты перепланировок
Рабочее место в гостиной
Перед началом осуществления глобального ремонта продумайте всей семьей какие дополнительные зоны должны получиться в результате.
При правильном расставлении акцентов в декоре можно даже в одной комнате сделать несколько разных по функционалу областей:
- В гостиной выделить уголок для мини-кабинета
- В спальне или зале оборудовать школьное рабочее место
- Выделить площадь с большим столом, которая будет играть роль столовой
- В объединенной с гостиной прихожке отделить область для обувной полки с зеркалом и крючками
Обратитесь к опытным проектировщикам, они помогут на 100% обыграть каждый метр площади. Дизайнеры интерьера учтут все пожелания жильцов и создадут идеальный план вашей будущей квартиры. Итак, рассмотрим варианты перепланировок, которые пользуются спросом именно в хрущевках.
Объединение кухни и гостиной
Это один из самых популярных вариантов перепланировки, после объединения ванной и туалета. Метод позволяет увеличить площадь кухонной зоны, которая в хрущевках катастрофически небольшая.
При сносе перегородки между гостиной и кухней, к полученной площади добавляется еще и коридор, который к ней вел.
Прекрасный интерьер гостиной
Таким образом получается многофункциональное помещение площадью в полквартиры, которое легко зонировать на рабочую зону по приготовлению пищи, обеденную площадку, гостиную и даже рабочее место или мини-кабинет. Дизайнеры советуют отделять зоны легкими перекрытиями, переносными ширмами, барной стойкой, а угловые диваны и арки позволят выделить место отдыха.
Объединение кухни и балкона
Кухоньку в 6 квадратов можно слегка увеличить за счет располагающегося в ней балкона, если таковой имеется. Лоджию необходимо остеклить и утеплить, чтобы в холодный период там поддерживалась комнатная температура. Сюда можно вынести холодильник, оборудовать шкафы для хранения круп, бытовой техники, а подоконник переоборудовать в барную стойку.
Увеличение гостиной за счет уменьшения площади спальни
Эргономичный гарнитур для спальни
Если перенести перегородку между жилыми комнатами вглубь меньшей из них, гостиная станет более просторной.
Предварительно устанавливают допустимый предел, чтобы в спальне поместилась кровать и проход к ней. При умелом дизайнерском оформлении и правильном выставлении света такая комнатка станет уютной и комфортной.
На такой шаг могут решиться семьи без детей или те, кому не нужно уединение. Такая перепланировка предполагает снос всех внутренних стен в квартире и превращение ее в большое сквозное помещение. Пластиковые раздвижные конструкции или легкие ширмы здесь выполняют роль перегородок.
Такой вариант считается очень смелым и современным. Дизайн, оформленный в минималистическом стиле, в жанре хай-тек, добавит помещению шарма и уникальности.
Изменения в санузлах
Согласно изначальным генпланам санузлы в хрущевках всегда раздельные, располагаются смежно через стенку. На ванну выделяется 3 м², на туалет 2 м². Этой площади катастрофически мало для нормального и удобного обустройства, поэтому санузлы часто расширяют за счет прихожей, если планировка последней позволяет.
Для удобства многие переносят двери из кухонного коридора в прихожку или наоборот. Популярным видом перепланировки является объединение ванной и туалета.
Во время сноса стен целесообразно заменить коммуникации трубопровода, особенно если они старые. Душевую кабину лучше купить угловую, она просторнее, но занимает меньше места. Шкафчики и полочки подберите подвесные, чтобы не загромождать пространство под раковиной.
Избавляемся от узких коридоров и глухих прихожих
Просторные прихожки сегодня гораздо актуальнее тесных и длинных коридоров, которые присутствуют практически в каждой хрущевке. Самым модным вариантом является снос всех перегородок и объединение гостиной с коридором. В этом случае при входе в квартиру жильцы сразу попадают в общую жилую комнату.
Убранные лишние перегородки
Часто в прихожих комнатах располагаются встроенные шкафы, которые занимают много места.
Их можно снести, чтобы освободить пространство. Точно также поступают с кладовками и нишами.
Демонтаж антресолей, кладовых, встроенных шкафов, ниш
Главной загвоздкой в таких демонтажных работах является то, что одна или несколько стенок в подсобных помещениях всегда примыкает к несущей плите.
При разборе встроенного шкафа или антресоли действуйте последовательно:
- Сначала освободите дверцы от петель
- Далее уберите дверные каркасы и навесы
- Аккуратно распилите деревянные планки и отделите их от конструкции
- Уберите крепления и освободите стену
Способы визуального увеличения пространства
Используйте как можно больше света и зеркал
- В маленьких спальнях установите кровать на невысоком подиуме вместо ножек. Помост декорируют подсветкой, что придает помещению дополнительный уют. Такая мебель визуально расширяет пространство
- Не затемняйте потолки.
Отличным решением станет монтаж натяжных потолков, так как их глянцевая поверхность визуально увеличивает высоту стен. Для этой же цели попробуйте создать разноуровневый потолок с дополнительной подсветкой - Вместо обычных створчатых шкафов заказывайте шкафы-купе. Они занимают меньше места, смотрятся современно и модно. Кстати, если сделать дверки зеркальными, вы зрительно прибавите место в комнате
- Не загромождайте помещение мебелью. Ограничьтесь минимальным набором. Не утяжеляйте стены полочками, рамками и картинами.
- Рельефная штукатурка, декор под камень или дерево, а также темные отделочные материалы зрительно уменьшают площадь комнаты. Если очень хочется имитацию кирпичной кладки, оформите ею только часть стены в определенном месте
- Оптимальными расцветками считаются светлые, максимально приближенные к белому цвету. Используйте для декора пластик, стекло, зеркала и блестящие металлические элементы.
Обои подберите без крупного принта, неброские, с мелким рисунком - Зеркальные стены, светлые колонны и другие фигурные элементы гипсовой отделки помогают создать оригинальный и уникальный интерьер
Преимущества глобального ремонта с демонтажем стен
Не стоит бояться затевать грандиозные ремонтные работы со сносом перегородок и переделкой общего плана квартиры. Ведь в результате вы получите просторную площадь в комфортабельной квартире. Если не решаетесь на крупные изменения, просто избавьтесь от встроенного шкафа, уберите антресоль, объедините кладовую с ванной.
Снос встроенного шкафа
Перепланировка полностью изменит облик и атмосферу вашего жилища. Здесь снова запахнет новой краской и свежей штукатуркой. Полностью уйдут старые запахи, которые годами скапливались в перекрытиях.
Обновленные поверхности будут радовать глаз современной отделкой. Если использовать светлые оттенки, потолок будет казаться выше, а стенки шире.
Не забудьте про гармоничный текстиль, который поможет зонировать пространство, завершить интерьер комнаты, сделать акцент на отдельных его элементах.
Вариант стильного оформления квартиры
Перепланировка двухкомнатной квартиры – задача вполне посильная для новичка в строительстве. Однако необходимо тщательно изучать правовые и технические моменты каждого вида деятельности. И обязательно консультироваться с опытными специалистами.
Помните, непродуманные действия могут привести к печальным последствиям. А грамотный подход подарит обновленную квартиру с комфортабельной планировкой. Пусть ваш дом станет уютным и удобным для всех домочадцев.
В завершение посмотрите видеоматериал с полезными рекомендациями по выбору лучшего метода расширения полезной площади в двушке:
ВИДЕО: Перепланировка хрущевки.
Все особенности.Перепланировка 2-х комнатной хрущевки: как эргономично разделить помещения и сделать маленькую квартиру просторной (20 Фото & Видео)
Для нас очень важна обратная связь с нашими читателями. Если Вы не согласны с данными оценками, оставьте свой рейтинг в комментариях с аргументацией Вашего выбора. Благодарим за ваше участие. Ваше мнение будет полезно другим пользователям.
Какой может быть перепланировка хрущевки, если 2 комнаты смежные — предлагаем варианты с фото
Наша задача: перепланировка двухкомнатной хрущевки. Что мы знаем об этих квартирах? Дома серий 1-510, 1-511, 1-477, 1-515 и некоторые другие хрущевки входят число несносимых зданий, в которых еще долгие годы предстоит жить российским семьям. Эти блочные и кирпичные пятиэтажные серии, в основном, строились в Москве и Подмосковье (так же есть немного отличающиеся серии в Петербурге и других городах), все они знакомы нам с детства. Отличительные особенности хрущевок — низкие потолки (250 см), отсутствие лифтов, очень маленькие площади помещений (а особенно кухонь и санузлов) и общая непрочность постройки.
Толщина наружных стен в таких домах составляет 30-40 см, внутренних межквартирных — 20-30 см, перегородок — 8 см.
Советские города массово застраивались панельными хрущевками в 1950-60х гг. по инициативе Никиты Хрущева (в честь которого и получили свое название) и до сих пор составляют большую часть жилого фонда городов бывшего СССР.
Двухкомнатные квартиры почти во всех сериях хрущевок неизменно имеют смежные комнаты, одна из которых настолько узкая, что поперек нее с трудом встает кровать. Из хорошего — абсолютно все перегородки можно снести, а в большинстве двушек есть балкон. Мы рассмотрим самую популярную планировку, встречающуюся почти во всех сериях хрущевок. Площадь такой квартиры в разных домах от 40 до 45 кв.м, жилая — от 26 до 31 кв.м, санузел иногда раздельный, иногда общий, но почти всегда — с сидячей ванной (стандартная не влезает по размеру).
На плане: Планировка двухкомнатной квартиры в хрущевке
БОЛЬШЕ ФОТО…
Еще 350 красивых примеров – Фото хрущевок
В таких квартирах живут очень разные по составу и количеству человек семьи, у каждой есть свой конкретный запрос. Так что при планировании маленького пространства на семью важно проанализировать все детали вашей жизни в квартире и спланировать ее под свои личные нужды. Мы же представим несколько общих идей, от которых можно отталкиваться.
Совет: Большинство перепланировок двухкомнатных квартир в хрущевках перед началом ремонта необходимо согласовывать и узаконивать.
НАЙДИ СТУДИЮ РЕМОНТА В СВОЕМ ГОРОДЕ>>>
Типовая двухкомнатная квартира состоит из двух смежных жилых комнат, кладовой, очень маленькой кухни, прихожей и санузла.
На фото: перепланировка двухкомнатной квартиры в хрущевке для одного или двух человек
Вариант 1. Квартира-офис
В этом варианте большая жилая комната объединена с прихожей и кухней, что создает большое общее пространство для еды и отдыха. В маленькой комнате (увеличенной в ширине на 15 см за счет перемещения перегородки) помещается спальня и вместительная гардеробная комната.
Главной «фишкой» квартиры стал маленький рабочий кабинет, отделенный от гостиной прозрачной стеной.
За счет раздвижных дверей он может стать частью общего пространства или отделиться в рабочую зону.
В санузле на место ванной встали душевая кабина и стиральная машина, а также там помещается длинная столешница с ящиками.
Даже в самой маленькой спальне нужно не забыть о горизонтальных поверхностях — для очков, телефонов, книг и прочего неизбежного набора вещей. Вместо маленькой тумбочки может встать красивый комод или специально спроектированная полка-ящик за кроватью.
На фото: новая планировка 2-комнатной квартиры в хрущевке — с увеличенной кухней
Вариант 2. Двушка для троих
В этом проекте проблема смежной комнаты решена так же, как в первом варианте — одна из двух комнат становится гостиной, не отделенной от прихожей. В маленькой комнате перегородка так же сдвигается на 15 см, там помещается спальня с детской кроваткой. Гардероб остается на своем прежнем месте, еще одна кладовая появляется на месте коридора.
В санузле помещается небольшая ванна, умывальник, унитаз и стиральная машина.
Главное в этой планировке — увеличенная кухня: холодильник и духовой шкаф находятся в нише, в остальном пространстве остается место для стола и рабочей зоны. Кухня отделена от гостиной раздвижными прозрачными дверьми, эти два помещения легко могу объединяться в одно. В гостиной располагается диван и кресла, остается место для игры с маленьким ребенком.
БОЛЬШЕ ФОТО…
Еще 15 красивых примеров – Дизайн кухни в хрущевке
На фото: такая перепланировка двухкомнатной квартиры отлично подойдет для семьи с маленьким ребенком
- Помещения: кладовая, гардероб, спальня, гостиная, кухня, прихожая, санузел.
- Подходит для семьи с маленьким ребенком; для любителей принимать гостей и много готовить; для обладателей большого количества вещей.
- Плюсы планировки: увеличенные кухня и спальня, много свободного пространства в гостиной, много зон для хранения, трансформируемое пространство.

- Минусы планировки: узкий коридор, только одно изолированное жилое помещение.
adminlawsexp
голос
Рейтинг статьи
три варианта грамотной перепланировки для семьи
Красивое и комфортное жилое пространство можно создать и в квартирах, построенных еще в Советском Союзе. Безусловно, в хрущевках есть свои минусы, но работать с этим всем можно. Более того – в некоторых случаях это лучшее предложение для семьи из нескольких человек, которая может позволить себе лишь определенное количество квадратов.
На фото:
Плюсы и минусы хрущевок
Среди недостатков хрущевок:
- низкий потолок
- плохая шумоизоляция.
- подъезды зачастую маленькие и узкие, не без тяжелого налета времени.
..
Но не стоит забывать о плюсах территориального расположении таких квартир:
- В Москве рядом с ними всегда есть метро, больницы и школы.
- Еще замечено, что даже сравнительно маленькая парковка у таких домов всегда пустует из-за того, что живут в них чаще всего пожилые люди.
- Двор же при этом тихий и зеленый, деревья уже большие, дарят кислород и покой. Но здесь же будьте осторожны, ставить машины под ними не рекомендуется, такие деревья первыми падут в сильный ветер, да и их урожай орехов и каштанов – сомнительное удовольствие на крыше автомобиля.
- Еще один плюс выбора хрущевок в том, что на сравнительно маленькой площади организованы двухкомнатные (а иногда и трехкомнатные!) квартиры, что большая редкость для новостроек. Двухкомнатную квартиру до 40 кв. м просто невозможно купить или даже организовать путем перепланировки. А в хрущевке вы получаете жилье с полноценными отдельными комнатами. Конечно, они небольшие, но согласитесь – ценно иметь сразу две спальни на площади 37 кв.
м.
Минусы и плюсы покупки рассмотрели, теперь попробуем сделать три варианта планировки хрущевок до 50 кв. м в домах типа 1-515/5, II-49 и II-18/9 для семьи из четырех человек.
Задачи
При создании планировки для трех типов хрущевок поставлена задача создать квартиру с двумя спальнями для семьи из четырех человек: родителей и двоих детей. Две рассмотренные квартиры являются двухкомнатными, одна – трехкомнатной, площадь каждой до 50 кв. м.
На фото: проект, реализованный студией Волковых.
Особенности перепланировки
Хочется отметить, что все предложенные планировки решены по закону: кухня с газовой варочной панелью должна быть отделена от жилого помещения дверью. Некоторые квартиры удается переоборудовать электрическими варочными приборами – в таком случае соединение кухни и гостиной возможно. Но мы рассматриваем варианты, максимально подходящие для всех обладателей таких квартир. Ведь как уже известно, управляющая компания не всегда дает на это разрешение по ряду имеющихся причин.
В описанных ниже планировках хрущевок также не предусмотрено присоединение балконов: по закону в квартирах с центральным отоплением этого делать нельзя.
В двух предложенных вариантах спальня получается без естественного света, так как в квартире не хватает окон для полноценной трешки. По закону жилая комната не может быть без солнечного света, но можно пойти на хитрость: при создании плана перепланировки указать, что это не спальня, а кладовка или гардеробная. А внести по необходимости солнечные лучи в интерьер помогут прозрачные материалы. Вы можете использовать стеклянные двери, раздвижные перегородки, фрамуги или сделать простенок из стеклоблоков. Современный рынок предлагает массу вариантов. Желательно также заранее позаботиться о принудительной вентиляции этой комнаты: в профильной фирме вам предложат массу вариантов для вашей планировки и бюджета.
1 вариант
На фото:
Рассмотрим двухкомнатную хрущевку серии 1-515/5.
В этой квартире есть хорошая возможность соединить хотя бы визуально пространство общего пользования – холл, гостиную и кухню. Несмотря на то, что мы обязаны поставить двери между кухней и гостиной, мы можем использовать раздвижную стеклянную перегородку, что даст больше визуального пространства.
При желании можно отделить гостиную зону от холла простенком, для большей камерности, но визуально пространства станет меньше. Холодильник здесь находится в зоне бывшего коридора – это позволяет расположить все системы хранения в одну аккуратную линию. Для такого маневра прежде всего необходимо объединить санузлы, это сэкономит некоторое пространство и бюджет на одну межкомнатную дверь.
На фото:
В хозяйской спальне расположилась среднего размера кровать, пара тумбочек и платяной шкаф. В детской – рабочая зона, полки для книг, двухуровневая кровать и шкаф.
Также в этом типе хрущевки есть балкон. На застекленном можно поставить дополнительную систему хранения, а если утеплить, то и организовать небольшую зону отдыха.
2 вариант
На фото:
Небольшая трехкомнатная квартира встречается в хрущевках серии II-49. Ее главный бонус – наличие четвертого окна, это позволяет обе спальни организовать с естественным светом. Еще одно достоинство этой хрущевки в том, что пространство холла и гостиной может быть максимально единым, что, как мы уже знаем, плюс для планировки малогабариток. Здесь, в гостиной, помимо диванной группы удается организовать столовую зону и даже поставить вместительный платяной шкаф.
Кухню отделяем от гостиной раздвижной системой хранения. Холодильник, как и в первом варианте, выносим в коридор, что экономит пространство и позволяет сделать рабочую поверхность больше. Продлив столешницу под подоконник, можно организовать стол для завтрака с барными стульями.
На фото:
Санузел в этой хрущевке можно как объединить, так и оставить раздельным. Объединение, как уже заявлено выше, экономит пространство, бюджет на дверь и, что немаловажно, вертикальную площадь стены: так можно выиграть место для пуфа, консоли или зеркала
Минус этой планировки – отсутствие места для полноценного платяного шкафа в спальне родителей. Компенсировать это можно, организовав вокруг изголовья шкафы П-образной формы, а вместо прикроватных тумб использовать полку в изголовье.
В детской разместился стандартный набор – двухъярусная кровать, рабочий стол и шкаф. Утеплив балкон, можно сделать небольшую игровую.
3 вариант
На фото:
Это квартира, характерная для нескольких типов хрущевок, включая серию II-18/9. Плюс этой планировки в том, что удается получить неплохую по габаритам детскую и устроить спальную комнату с раздвижными дверями, что визуально расширяет пространство.
Полноценный шкаф в спальне можно организовать за счет площади детской, здесь актуальна будет система раздвижных дверей «купе».
На узком балконе при гостиной также можно поставить шкаф, но больше для утилитарных нужд, нежели для одежды. Санузел в этой хрущевке также есть смысл объединить. Слева от входа получаем вместительную систему хранения. Небольшая кухня умещает все необходимое для готовки и стол на всех членов семьи. Делать системы хранения в кухне Г-образно не рекомендуется, останется очень мало места для столовой зоны.
На фото:
Безусловно, у каждой семьи свои потребности к организации пространства, но, как показывают три выше описанных варианта, сделать полноценное жилье на столь малой площади хрущевки возможно. Главное – продумать все детали планировки до возведения перегородок. В таких маленьких квартирах нет шанса на ошибки: до того, как поставить стены, сделайте их макеты из одного ряда блоков, обозначьте мебель при помощи коробок или границ, очерченных малярным скотчем, можно принести на стройку складные стулья – все это даст понимание будущей планировки, объема пространства и позволит избежать ошибок в будущем.
Жизнь в киевской хрущевке: советская архитектура в Украине | Новости России
Киев, Украина — Квадратный и простой. Красные кирпичи. Пять лестничных пролетов. Лифта нет. Ветки и сухие листья лазают по фасадам, между балконами. Строения серые, унылые, унылые, ветхие. Они все выглядят одинаково.
Основная часть жилищного фонда украинской столицы построена во времена советских лидеров Иосифа Сталина, Никиты Хрущева и Леонида Брежнева. Эти многоквартирные дома, состоящие из десятков квартир с кухнями площадью от четырех до шести квадратных метров, тонкими кирпичными стенами, миниатюрными коридорами и одной-тремя комнатами, известны как хрущевки и составляют сегодня значительную часть всего жилья в Киеве: 3055 зданий, в том числе некоторые из них. 211 512 квартир.
Мрачные жилые дома воплощают логику и политику Никиты Хрущева и помогли разрешить жилищный кризис СССР после Второй мировой войны. Они были созданы с одной целью: как можно быстрее накрыть крышу над головами как можно большего числа людей.
В 1950-х годах, помимо начала политики «оттепели» и процесса «десталинизации», Хрущев — для удовлетворения потребностей перенаселенных городов — приказал устранить все, что считалось «чрезмерным».Он предложил построить дешевое, малоэтажное и временное жилье для людей, которые должны были переехать в лучшие места, как только будет достигнут «настоящий коммунизм».
Однако жизнь сложилась иначе, и люди продолжали жить там долгие годы. Мы встречаем одну такую семью — Выщняки.
Николай и Тамара
Николай и Тамара научились смиренно жить, полусогнутые ноги у подножия кухонного стола, которым Тамара часто гладит одежду своей семьи.Оба пенсионеры, они живут на четвертом этаже пятиэтажного дома советских времен из красного кирпича в Дарницком районе, в 20 км от центра Киева. В их квартире площадью 60 кв.м не так много места для комфорта.
Утро субботы. Николай с заспанными глазами и чайником в руке наливает горячую воду в кофейную чашку, а Тамара, плечом к плечу с мужем, готовит обед для пяти человек, живущих здесь: для себя, дочери Анны, внука Богдана и Мама Николая Ирина.
«Я не знаю, куда ставить посуду», — говорит она. «Мы не можем обедать здесь, на кухне, там нет места». Для семьи Вищняк обедать на старой тележке из дерева и латуни, сидя на диване-кровати и на импровизированных стульях в гостиной, стало нормой.
Жесткий советский конформизм, твердый по структуре и форме, все еще находит свое отражение в повседневной жизни. Пространства, на первый взгляд отдельные и четко определенные — двери, которые нужно закрыть, стены, которые нужно разделить, — изменились, слились, трансформировались.Гостиная превратилась в спальню; балкон кровать; спальня мини-квартира; кухня прачечная, окно витрина. Больше нет внутреннего и внешнего; ближний или дальний. Пространство ограничено.
Для Николая и Тамары, которые все еще вместе после 43 лет брака, их утренние хлопоты, прогулки и закуски во второй половине дня — личные, доверительные, соседские — являются частью их повседневной жизни. Все есть.
Ирина
Комната Ирины площадью 15 кв.
М превратилась в отдельную квартиру, объединяющую гостиную, спальню и кухню.В ее глазах живет усталость женщины, родившейся и выросшей в суровых условиях различных коммунистических режимов.
«Он [Сталин] был диктатором, он хотел изменить наш образ мышления, наш образ жизни», — говорит 96-летний по прозвищу «Бабушка Ира», листая старые семейные фотографии. «Он стремился к капиллярному контролю над обществом».
Она останавливается на мгновение, чтобы посмотреть на портрет своего отца, Гавриила, фермера, подавленного коллективизацией сельского хозяйства, начавшейся в конце 1920-х годов, который был вынужден работать в колхозе.Работа отнимала у Ирины дни между сбором огурцов и сбором урожая пшеницы — каждый день, без перерывов.
«Поглотил там, по 12-15 часов в день, под тщательным контролем партийного чиновника. Если бы вы сопротивлялись, вас бы посадили в тюрьму », — говорит она, вспоминая усталость, все усилия, связанные с малой едой, и разочарование в середине 30-х годов, период правления Сталина, чисток.
Анна
Анна сидит на балконе, в своем интимном пространстве, босиком, в халате и с тушью в руке. Каждое утро 43-летний парикмахер готовится между подушками и шерстяными одеялами, сложенными на полу, потому что одного туалета на пять человек недостаточно.
Но для нее их квартиры более чем достаточно. Это неотъемлемая часть ее детства, юности и материнства.Это место она называет своим домом.
Она выросла в 1980-х годах, в эпоху гласности Михаила Горбачева и перестройки, когда Коммунистическая партия Советского Союза реформировала политическую систему и общество: большая прозрачность, меньше контроля, больше свободы.
«Люди стали разговаривать и одеваться, как они хотели, информация распространялась свободно», — вспоминает Анна, глядя в окно с чашкой кофе в руках.
Но жизнь на Украине снова изменилась, когда «внешняя империя» СССР начала рушиться.
«Никто не понимал, что происходит», — говорит 17-летняя Анна о переходном периоде, кульминацией которого стало обретение Украиной независимости от Советского Союза в августе 1991 года. «Преступники ходили по улицам. В магазинах было пусто, на полках только варенье и водка ».
Анне потребовалась Оранжевая революция после президентских выборов в ноябре 2004 года, чтобы идентифицировать себя с желто-синим национальным флагом. Протестуя вместе с тысячами людей на Майдане Назалежности, Анна наконец почувствовала себя украинкой.
«Мы мирно проводили демонстрацию против коррумпированного правительства Виктора Януковича, против тех, кто видел Украину как придаток России, и требовали новых выборов. В тот момент я почувствовала себя частью нации, страны, Украины », — говорит она. «Мы не русские. Мы украинцы. А мы разные ».
Богдан
Пятнадцатилетний Богдан — лицо четвертого поколения выщняков, живущих в Хрущевке.
Каждый день с рюкзаком и смартфоном в руке ходит по улицам Дарницкого района, чтобы добраться до школы.
Богдан, как и его мать Анна, родился в этом районе.
Но пока Украина ведет ожесточенную войну с Россией, эта территория, явно советская, начинает визжать от его националистического духа. Прошло почти пять лет с тех пор, как Донецкая и Луганская области в Донбассе были незаконно аннексированы российскими войсками.
«Если бы мне было 20, я бы пошел на фронт», — говорит он, указывая на слово «защищать» и автомат Калашникова, напечатанные на его черной толстовке. «Я бы пошел туда воевать, не думая, не задумываясь, без страха.Это моя нация. Я не могу позволить никому вторгнуться в мою страну ».
МО Музей
Анализ сельской урбанизации в Советском Союзе выявляет две четкие идеологические цели: во-первых, искоренение частных односемейных усадеб, а во-вторых, «сближение» городов и деревень, призванное способствовать объединению небольших деревень и усадеб в единое целое.Специализация и концентрация совхозов началась после 1970 года.В 1983 году, например, было уже 28 межхозяйственных свиноводческих предприятий.
должны были быть сконцентрированы в одном центральном сельскохозяйственном поселении, которое должно было приблизиться к новым промышленным городам как по форме, так и по содержанию. Сельская урбанизация кардинально изменила сельский пейзаж в Советской Литве.
Принудительная ликвидация односемейных дворов, мелиорация земель и постоянная консолидация сельских общин означали, что к 1983 году 64 процента сельских жителей Литвы проживали в колхозных поселениях.
Новые методы планирования, строительства и лесонасаждения были представлены и продвинуты на специальных витринах колхозных поселений. Опытный поселок Дайнава (архитекторы: Рамунас Камайтис и Виргиниюс Шимкус, 1965–1969), построенный на территории советской птицефабрики Леонполис недалеко от Укмерге в центральной Литве, стал образцом для деревенской общины нового типа, призванной продемонстрировать будущее лицо литовской деревни. Дизайн был направлен на воссоздание условий, в которых живут городские сообщества, поэтому отдельные фермы были ликвидированы и заменены городскими многоэтажными сборными домами и центральным районом с универмагом.
Этот функционалистский эксперимент по «пересадке города в деревню» получил одобрение и поддержку со стороны правительства, но он быстро стал объектом критики и был признан неудачным. Даже присуждение Государственной премии СССР поселку Дайнава в 1971 году не смогло закрепить использование этой «городской» модели развития села, при которой колхозники были полностью отключены от своих индивидуальных хозяйств. Тем не менее, именно в этот период во многих колхозных общинах Литвы выросли стандартные 2-3-этажные жилые панельные дома.
1970-е ознаменовали новый этап в литовской сельской архитектуре под лозунгом «начало создания новой литовской деревни». Этот период также был в первую очередь временем роста аграрной экономики трех прибалтийских республик, что позже позволило колхозникам пользоваться плодами более высокого качества жизни (в том числе в архитектуре), чем сельскохозяйственным рабочим в остальной части Советского Союза. .
После того, как в 1973 году были составлены планы всех новых литовских сельских поселений, большинство из которых основывались на стандартизированных (однообразных) проектах, дебаты перешли к необходимости отличительных черт.
Эта дискуссия совпала с возрождением фольклорного регионализма в архитектуре и побудила архитекторов проявить интерес к уникальной самобытности этнографических регионов Литвы. Архитекторы проектного института колхозного строительства начали применять разные подходы: выделять естественный ландшафт местности, избегать прямых угловых пересечений улиц, создавать разные типы проектов жилого дома. Эту радикально изменившуюся идеологию прекрасно иллюстрирует название статьи, написанной архитектором и градостроителем Казимирасом Шешелгисом: «Защитите деревни от городских структур!
Пленарное заседание Коммунистической партии Советского Союза в 1978 году стало важным стимулом для жилищного строительства в социалистических деревнях, обратив внимание на тот факт, что улучшение условий жизни может помочь соблазнить подготовленных специалистов в области сельского хозяйства и других областей жить и работать в сельской местности.Это позволило более либерально изучить требования к жилым районам и внедрить более оригинальные подходы к жилому дому для одной семьи.
Результатом этой идеологии был назван Alytaus namelis (Алитусский дом), проект, который продемонстрировал четкий компромисс между успешным возвращением в сельские поселения дома для одной семьи, построенного из местных материалов, помогающих сохранить региональные черты, и постоянное соблюдение строгих требований индустриального строительства и сборки, поскольку дом был изготовлен на заводе из стандартных картонных панелей.
Шесть типов домов — каждый с разными фасадами, планами этажей (от 70 до 120 квадратных метров) и разным количеством комнат (3–5) — начали строиться в Алитусе в 1976 году. Одноэтажный дом с мансардой. , построенная на высоком фундаменте (оборудованном подвалом), выделялась среди сельской местности своим колоритом и различной отделкой (красный и желтый кирпич, каменные стены) и крутой двускатной крышей, покрытой черепицей или цветным сланцем. Внутри было достаточно места для кухни и столовой, кладовой и подсобных помещений.
Новый символ процветания литовских деревень и малых городов в позднесоветский период, Алитусский дом (сокращенно до Алитнамис на литовском языке), хотя и хорошо спроектирован, но постоянно совершенствовался. В нем были и недостатки, в основном из-за низкого качества строительных материалов (колхозники называли Алитусские дома «картонными домами»).
Распространение региональной архитектуры в сельской Литве в позднесоветский период также хорошо иллюстрирует образцовый колхозный поселок Юкнайчяй (архитекторы: Альфонсас Кишкис, Рута Кишкене, Станисловас Калинка, Эдмундас Вичюс).Юкнайчяй также извлек выгоду из амбициозных усилий председателя совхоза Зигмантаса Докшаса по созданию нестандартной среды проживания.
Генеральный план поселка Юкнайчяй 1974 г. предусматривал разделение жилой и производственной зон, при этом дома были сгруппированы в небольшие кварталы, окруженные зелеными зонами, а не выстроенными вдоль улицы. Строение поселения и прилегающего к нему парка было задумано известным ландшафтным архитектором Альфонсасом Кишкисом и его женой Рутой.
Возведение зданий с уникальным дизайном (в том числе жилых) было инициировано председателем колхоза, основываясь на опыте зарубежных поездок. В Юкнайчяй входили нестандартные полутораэтажные и два с половиной этажа жилые дома с квартирами на двух этажах (проект архитектора Вичюса), восьмиэтажные жилые дома (архитектор: Калинка) и общественные здания красного цвета с плавным дизайном кирпичные и покрытые ломаной черепичной крышей.
Первоначальным сооружением был так называемый Зал духовно-физического здоровья (!) (Также Калинка, 1977 г.) — комплекс бассейнов и саун, по своей архитектурной композиции напоминавший церковь с примыкающим к ней монастырем.С самого начала в Юкнайчяй были созданы новые административные должности для специалистов, курирующих поселок, в том числе архитектора совхоза (Вичюс) и официального художника (Гинтарас Аугайтис). Вопросы озеленения и озеленения были переданы Бенедикте Докшене, который занял новую должность ландшафтного агронома, а для оформления украшения были приглашены известные литовские художники (скульпторы Станисловас Кузьма и Гедиминас Каралюс, мастера витражей Константинас Шатунас, Альгирдас Довиденас и другие).
здания и парк поселка.С социальной точки зрения Юкнайчяй был воплощением социалистически-патерналистского принципа заботы о людях «от колыбели до могилы», поскольку поселок включал в себя полную систему социальной защиты колхозников, от детских садов до дома престарелых и кладбища. . Архитектура поселка Юкнайчяй получила Ленинскую премию 1988 года.
советских домов были классно серыми. Этот украинский комплекс полностью посвящен цвету
В начале «Волшебник из страны Оз» есть момент, когда дом Дороти уносится прочь из черно-белого мира Канзаса и с глухим стуком приземляется в Стране чудес страны Оз. ослепления Technicolor.
Вы испытываете такое же чувство изумления, когда заходите в Комфорт-Таун, крупную жилую застройку, которая в последние годы сформировалась в сером жилом районе советских времен в Киеве, столице Украины.
Комфортный город вырисовывается над ландшафтом, как какой-то гигантский конструктор Lego в самых ярких оттенках: кричащий желтый, ярко-зеленый лайм, синий и оранжевый и темно-красный кирпичный — все это поднимается в небо в виде десятков блочных высоток.
здания. Даже серый цвет кажется богатым пигментацией.Весь комплекс занимает около 115 акров, что примерно в 1 1/2 раз больше площади Диснейленда.
Строители «Комфорт-таун» хотели создать комплекс, который понравится людям, в отличие от домов советской эпохи, преобладающих в Киеве.
(Алексей Фурман / For The Times)
Цвета выделялись бы где угодно, но в Киеве они взрываются чувствами, как фейерверк в мрачном небе, практически издеваясь над серым городским пейзажем вокруг него.
В этом была вся идея.
Мы вернемся к этому через минуту. Во-первых, о советском массовом жилье, без него не было бы Комфортного города.
7 декабря 1954 года Никита Хрущев выступил на Всероссийской строительной конференции с призывом к капитальному ремонту советской архитектуры. Хрущев был лидером Коммунистической партии Советского Союза в то время, и он предложил архитекторам полностью сосредоточиться на простых, стандартных зданиях из сборного железобетона.
Замечательная речь.Хрущев временами больше похож не на лидера международного коммунистического движения, а на строительного подрядчика, пытающегося получить крупный промышленный счет. Никакая деталь не может привлечь его внимание.
«Необходимо расширять производство линолеума», — настаивает он. «Полы с линолеумом ничем не хуже паркетных; они гигиеничнее и умнее. За такими полами легче ухаживать, чем за паркетом. Всем известно, что паркетные полы нужно покрывать воском — дело сложное и требует дополнительных затрат.
Вскоре строительные бригады по всей России, Украине и остальному Советскому Союзу возводили десятки тысяч одинаковых пятиэтажных жилых домов, в основном без украшений, что помогло облегчить массовый жилищный кризис. Они были названы хрущевок в честь человека, который приказал их построить.
Чтобы понять их значение, важно вспомнить, что они заменили: коммунальные квартиры, в которых были теснены несколько семей, одна семья в комнате, и были вынуждены делить ванные комнаты и кухни.
С 1955 по 1970 год примерно половина всех городских жителей Советского Союза переехала в новое жилье, по словам Джейн Зависка, профессора социологии Университета Аризоны и автора книги «Жилье для Новой России».
Позже, при преемниках Хрущева, пятиэтажные дома уступили место многоквартирным домам гораздо большей высоты. Каждые несколько лет дизайн менялся, но целые районы таких городов, как Москва, Ленинград и Киев были заселены рядами бесцветных многоэтажек, которые, казалось, тянулись до самого горизонта.
Это стало чем-то вроде народной шутки. Один из самых популярных советских фильмов «Ирония судьбы» — это романтическая комедия, полностью построенная на идее о том, что нельзя отличить здания друг от друга (и мужчина может наткнуться на квартиру незнакомой женщины и утверждать, что это его своя). В начальных титрах используется анимация, рассказывающая историю советского жилья, поскольку архитектурные украшения снимаются со зданий, а армии высотных башен маршируют на свои места.
Ученые говорят, что жилищное строительство — это та область, где Советский Союз сделал то, что не смогли Соединенные Штаты: предоставить дешевое, достаточно приличное жилье для всех. «Они действительно решили жилищный вопрос», — сказал Стивен Харрис, историк из Университета Мэри Вашингтон и автор книги «Коммунизм на завтрашней улице: массовое жилье и повседневная жизнь после Сталина». Один историк архитектуры подсчитал, что сегодня 170 миллионов человек во всем мире живут в массовой застройке советского типа.
Теперь эти здания — которые можно найти практически в каждой стране, где Москва когда-то обладала влиянием, — признаны за их социальное назначение, но немногие защищают их из эстетических соображений.«Они действительно становятся очень серыми, — сказал Харрис. В некоторых местах, в первую очередь в Москве, были предприняты программы по их сносу.
В Киеве, среди многих других мест, массы серых зданий 1960-х и 1970-х годов обветшали с возрастом, окруженные неопрятными, засыпанными сорняками и мусором дворами, потрепанными металлическими навесами и скрипучими детскими площадками.
Это возвращает нас в Комфортный Город.
Comfort Town построен на месте заброшенного резинового завода в одном из самых неблагополучных районов украинской столицы.
(Алексей Фурман / For The Times)
Идея родилась около десяти лет назад, по словам со-проектировщика Дмитрия Васильева, который входил в группу архитекторов, которым было поручено построить новый жилой комплекс на месте заброшенного резинового завода в одном из самых неблагополучных районов украинской столицы. Они хотели, чтобы он стоял отдельно от окружающих его домов советских времен. Они хотели построить место, которое было бы привлекательно для людей и которое могло бы поднять настроение жителей, а не подавить их.
Была одна серьезная загвоздка, сказал Васильев: это должно было быть дешево.
«Единственным инструментом, с которым нам приходилось работать, был цвет, — сказал со-дизайнер Comfort Town Дмитро Васильев.
(Митчелл Ландсберг / Los Angeles Times)
«Единственным инструментом, с которым нам приходилось работать, был цвет», — сказал он, стоя у входа в закрытый жилой комплекс, отмеченный искусственной ветряной мельницей, за которой скрывается электростанция.
«Мы использовали самые простые материалы, самые простые техники.У нас действительно просто были цвета и линии горизонта ».
Они взбесились с цветом. Линии здания в основном похожи на позднесоветские постройки с некоторыми ключевыми отличиями. Некоторые из зданий имеют остроконечные крыши, а не стандартные плоские крыши советских домов. Балконы, которые примыкают к стенам советских домов, имеют углубления, поэтому не выпирают.
Большая часть общего пространства представляет собой внутренние дворы, зеленые с лужайками, кустами и деревьями, тогда как у советских зданий были дворы, выходящие наружу.Кубе Снопеку, польскому архитектору и специалисту по советскому массовому жилью, это представляет собой ключевое философское различие: советская система была построена на принципе государственной, общественной собственности, поэтому она была открыта для масс; Комфортный город является частным, его внешнее пространство более закрыто.
Comfort Town предлагает жилье по рыночной цене — от 40 000 до 90 000 долларов за квартиру.![]()
(Митчелл Ландсберг / Los Angeles Times)
Существует также разница в стоимости: в то время как советское жилье было бесплатным (и жители обычно получали право собственности после распада Советского Союза), Комфорт-Таун предлагает жилье по рыночной цене — от 40 000 до 90 000 долларов за квартиру.
Тем не менее, сходство с советским жильем поразительно — например, включение школ и фитнес-центра в застройку. «Комфортный город» может быть реакцией на советскую архитектуру, сказал Снопек, но «то, что я считаю забавным в этой ситуации, — это то, насколько это незначительная реакция». (Он также не является поклонником цветовой схемы: «Я лично не вижу в этом смысла».)
Жанна Ржанова, пресс-секретарь разработчиков «Комфортного города», признала, что эта цветовая схема подходит не всем.«Либо ты любишь это, либо ненавидишь», — сказала она. «Между ними ничего нет».
Елизавета Панкратова толкает коляску с сыном Кристианом в Комфорт-Таун.
(Митчелл Ландсберг / Los Angeles Times)
Настоящая инновация «Комфорт Таун», по словам Васильева, заключается в квартирах, которые имеют отдельные спальни и гостиные.
Это может показаться ничем не примечательным, но в советских квартирах такого различия не проводилось. Были просто комнаты, и целые семьи часто спали в одной комнате, где они развлекались, смотрели телевизор и так далее.Комфорт Таун предлагает апартаменты с одной, двумя и тремя спальнями, каждая с гостиной и кухней. Их размер варьируется от 430 квадратных футов до чуть менее 1000 квадратных футов.
Это, кажется, главная привлекательность для многих из 20 000 жителей, а также чувство безопасности и дружелюбия с детьми.
Наташа Калниболоцкая и ее муж были одними из первых семей, переехавших в Комфорт-Таун после его открытия в конце 2012 года. До того, как у них появились дети, они жили в небольшой однокомнатной квартире.«Это был мой муж и пиво», — пошутила она.
Жительница Комфортного города Наташа Калниболоцкая с дочерьми Машей (слева) и Верой на детской площадке в жилом комплексе.
(Митчелл Ландсберг / Los Angeles Times)
После того, как у них родилось двое детей — Маша, которой сейчас 4, и Вера, 2 года, они переехали в большую квартиру к родственникам, а затем в собственное трехкомнатное место.
«Я из худшего района Киева, поэтому это лучшее, что со мной когда-либо случалось», — сказала 38-летняя Калниболоцкая.
Она и ее дочери гуляли, наслаждаясь недавним солнечным днем на одной из детских площадок Комфорт-Тауна, где даже земля залита яркими пятнами. Ясно, что это была не самая важная причина жить там. Но, по ее словам, «дети с первого дня понимают цвета».
Она считает, что калейдоскоп Комфортного города делает их счастливее. Словно в подтверждение своей правоты девушки улыбнулись и побежали играть.
Отчетность для этой статьи была частично профинансирована Банком развития KfW, который поддерживает беспартийный некоммерческий фонд Германского фонда Маршалла стипендий США.
Пятиэтажная история | Wilson Center
До 1,6 миллиона москвичей проживают в ветхих домах, которые не подлежат ремонту, заявил мэр Москвы Сергей Собянин президенту Владимиру Путину во время телевизионной встречи на прошлой неделе. «Что ж, это здание нужно сносить и вместо него строить новое», — сухо предположил Путин, как если бы двое мужчин обсуждали старую дачу Собянина.
Рассматриваемые дома — пятиэтажные панельные дома, построенные при Никите Хрущеве 50-60 лет назад, давно изжили свой временный статус.Они никогда не должны были служить так долго. Проблемы, во-первых, невероятно многочисленны, а во-вторых, они были созданы социалистическим государством в правовой среде, разительно отличной от сегодняшней. Сегодня даже в России люди имеют право частной собственности.
Но прежде чем попасть в затруднительное положение политика, которому поручено изменить путь, проторенный поколениями его предшественников, нужно понять важность этого пути.
Недостаточное финансирование, острая нехватка строительных материалов и отсутствие политической воли заниматься мелкобуржуазной проблемой, такой как жилье, — все это способствовало созданию человеческой катастрофы, которую Никита Хрущев унаследовал от Иосифа Сталина.
В 1956–57 советский архитектор Натан Остерман с несколькими сотрудниками построил экспериментальный квартал многоквартирных домов в Юго-Западном округе Москвы.
В новосозданном поселке Черемушки было несколько домов из кирпича, дома из сборного дома и из сборных крупнопанельных домов, большинство из которых представляли собой строгие пятиэтажные дома, лишенные какого-либо декора и балконов. Они стояли среди зеленых полей, все еще усеянных деревнями в то время. Сегодня эта часть города считается одной из самых престижных и дорогих; он чувствует себя центральным и может похвастаться хорошими школами.
Еще в 1956 году это был проект государственного значения для страны с 200-миллионным населением, большинству из которых негде было жить. В Соединенных Штатах, вероятно, никогда не было жилищного кризиса таких масштабов. Послевоенная Европа в известной мере знала это. Но Советский Союз 1940-х и 1950-х годов был другим. Это было место, где столкнулись последствия головокружительной индустриализации, ускоренной урбанизации и жестокой войны, вызвав огромную нехватку не только жилья, но и любого вида жилья.
Хотя революция 1917 года была развязана в преимущественно сельской стране, где всего 15 процентов населения проживало в городах, Советский Союз второй половины 1950-х годов был на пороге превращения в урбанизированное общество.
К 1960 году пятьдесят процентов населения составляли городские жители. Только Москва расширилась в три-четыре раза, в зависимости от того, какой год взят за отправную точку, 1917 или 1920, когда Москва сократилась с 1,8 миллиона до 1 миллиона. Во всяком случае, в конце 1950-х годов 5-миллионной Москве приходилось довольствоваться количеством жилья, рассчитанным менее чем на 2 миллиона.
10-кратный рост не был чем-то необычным: и Екатеринбург, и Новосибирск выросли в 10 раз в период с 1917 по конец 1950-х годов. И все же лишь ограниченное количество «социалистических жилищ» было построено для заводских рабочих и инженеров в 1930-х и 1940-х годах. Недостаточное финансирование, острая нехватка строительных материалов и отсутствие политической воли заниматься столь мелкобуржуазным вопросом, как жилье, — все это способствовало созданию человеческой катастрофы, которую Никита Хрущев унаследовал от Иосифа Сталина.
9-й район Черемушек стал образцом для той застройки, которую Хрущев решил использовать для решения этой проблемы.
Так называемые «микрорайоны» (микрорайоны или микрорайоны, рассчитанные на десятки тысяч жителей каждый) были воспроизведены по всему Советскому Союзу. Подавляющее большинство россиян, в том числе и я, выросли в таком микрорайоне. В микрорайонах обычно есть зеленые насаждения, многоквартирные дома, разбросанные на расстоянии от 50 до 200 метров друг от друга, станция метро где-то поблизости и большинство объектов инфраструктуры в пределах пешей досягаемости.
Было бы здорово, если бы многоквартирные дома были немного лучше и если бы в магазинах была лучшая еда — а иногда и вообще еда. Но нам все равно понравилось. Нам было не с чем сравнивать. И, конечно же, ценили чистый воздух, прогулки по лесу, катание на лыжах зимой, езду на велосипеде летом.
Взбесить и переделать все это — действительно немыслимое усилие, которое даже не рассматривается. Только Москва может позволить себе решить эту проблему, и она может позволить себе решить ее лишь частично.
Первоначально эти кварталы были заполнены панельными пятиэтажными жилыми домами. В конце 1960-х годов были введены такие же сборные дома от 9 до 16 этажей, чтобы вместить больше людей в рамках одной схемы микрорайонов. Такие застройки охватывают до 80 процентов городских территорий на постсоветском пространстве. Разрушить и переделать все это — поистине немыслимое усилие, которое даже не рассматривается. Только Москва может позволить себе решить эту проблему, и она может позволить себе решить ее лишь частично.
Многие дома советской постройки находятся в аварийном состоянии. В Москве планируют сносить в основном пятиэтажные дома, срок эксплуатации которых давно истек. Несмотря на более раннюю и гораздо меньшую программу сноса, большая часть из них все еще стоит. Планируется снести и построить не менее 25 миллионов квадратных метров жилья. Это очень много. Это более 10 процентов всего жилого фонда Москвы; Здесь проживает 1,6 миллиона человек.Советской строительной индустрии (а она могла работать быстро) понадобилось около 10 лет, чтобы построить столько.
План действительно амбициозный, мягко говоря.
Многие объяснили яркую встречу Путина и мэра Собянина инсценировкой предвыборной процедуры. Многие говорили, что такой крупный строительный проект станет золотым дном для строительных фирм, принадлежащих приближенным мэра.
На самом деле не нужно восстанавливать десятую часть крупнейшего города России, чтобы победить на выборах в России.В настоящее время нет оппозиции, которая могла бы бросить серьезный вызов Путину или Собянину. Кремль позаботился об этом. На проект уйдет более 10 лет, возможно, десятилетий, и он будет невероятно дорогостоящим. Сейчас котируется диапазон от 4 триллионов рублей (68 миллиардов долларов) до 6 триллионов (103 миллиарда долларов). На этой самой предварительной стадии цифры являются лишь абстракцией и, вероятно, слишком занижены.
На самом деле эта история означает для меня то, что сегодняшняя Россия является заложницей советской политики.Даже если бы Москва смогла очеловечить свое жилье, большая часть России просто не смогла бы себе это позволить.
Нам придется подождать, пока все сборные блоки просто постепенно распадутся и освободят место для чего-то, что придумают наши дети.
Мнения, выраженные здесь, принадлежат исключительно автору.
100 лет массового жилищного строительства в России
100 лет массового жилищного строительства в России
ул. Горького (Тверская), Москва, 1978 г. Изображение предоставлено Василием Егоровым, ТАСС ShareShare-
Facebook
-
Twitter
-
Pinterest
-
Whatsapp
-
Почта
Или
https: // www.archdaily.com/898475/100-years-of-mass-housing-in-russia Историю массового жилищного строительства в России можно разделить на несколько отдельных периодов, каждый из которых проявляется в виде особого типа жилого дома. Эти дома показывают, какой образ жизни, уровень комфорта, стоимость строительства и отличительные черты считались предпочтительными в то или иное десятилетие.
На каждом новом этапе были свои эксперименты и свои достижения, которые в совокупности можно рассматривать как серию уроков, открытий и опытов, помогающих понять специфику российского стандартного жилья.
1917-1930: Первые попытки, первые эксперименты
Октябрьская революция внесла ряд изменений в жилищную политику России, определив ее развитие на многие годы вперед. Два указа 1918 года «Об упразднении частной собственности в городах» и «О земельной социализации» дали начало так называемым коммунальным квартирам. Государственная собственность стала составлять большую долю от общего жилищного фонда и строительных проектов страны; Советская власть также взяла на себя задачу распределения жилья между людьми.
В 1920-х годах начал формироваться новый тип недорогого массового жилья. Комитет строительства Российской Советской Федеративной Социалистической Республики первым в истории страны приступил к разработке модели типового дома в соответствии с современными требованиями и с применением научного подхода.
Среди прочего, власти провели ряд различных конкурсов, и эти меры в конечном итоге привели к созданию принципиально новых типов домов, начиная от коммунальных домов и заканчивая так называемыми городами-садами.
По замыслу, местный житель мог прожить всю жизнь в этом районе, не испытывая потребности в чем-то за его пределами: здесь были магазины, детские сады, школы, институт с общежитиями, фабрика и даже крематорий. Хавско-Шаболовский микрорайон был важной частью района. Его тринадцать зданий были расположены под прямым углом друг к другу и под углом 45 градусов к главным улицам.Эта особенность обеспечила хорошее освещение и создала замкнутую дворовую систему. Балконы и плохие гостиные выходили на южные фасады, а кухни и ванные комнаты были спроектированы так, чтобы смотреть на север. Каждый ряд домов имел свою цветовую гамму. Общественное здание разместили в центре района.
1935-1955: Изящный декор и высокие потолки: нескромное очарование сталинского дома
В начале 1930-х годов публичный конкурс проекта Дворца Советов и нового сталинского генерального плана Москвы (1935) ознаменовал архитектурный сдвиг к эксплуатации классического наследия.
Москва-сити первой выпрямляла, расширяла и застраивала свои проспекты торжественными ансамблями, а затем ее примеру последовали многие города России. Художественные особенности в зданиях и в районе в целом стали приоритетом. После Второй мировой войны эта тенденция усилилась; однако многоэтажные постройки стали менее распространенными, а деревянное строительство вернуло свою актуальность.
Освоение технологии изготовления элементов конструкций на заводе (вместо изготовления прямо на стройке) — огромный прорыв этого периода.Но многие проекты по-прежнему выполнялись по собственному уникальному индивидуальному проекту, и это обеспечивало разнообразие архитектуры жилья того времени.
В 1949 году было введено так называемое стандартное планирование: этот подход полностью отвергает идею отдельного дизайна для каждого проекта и принимает прямо противоположное этому — концепцию дизайна, которая подразумевает работу над стандартизованными типами жилья и планами серий.
На Тверской улице Россия впервые опробовала технологию ускоренного (индустриального) строительства: несколько бригад рабочих с разной квалификацией поочередно переходят с одного объекта на другой, каждый из которых выполняет свою задачу.
В результате удачного эксперимента дом № 4 по улице Горького идеально вписался в монтажный рельеф дороги: на всех трех участках жилые дома занимают пять этажей, а высота первых этажей отведена под магазины. и места приема пищи, разные. Цоколь и портал облицованы полированным гранитом, жилые стены — сборной плиткой; внутреннее убранство — лепнина и скульптура.
1955-1960: формула Хрущева: компактное жилье и заезд «микрорайонов»
После знаменательной речи Никиты Хрущева 1955 года и указа «О ликвидации излишеств в планировке и строительстве» в жилищной отрасли России начались сдвиги. к гораздо более простой, менее напористой архитектуре — и более дешевому строительству.Также было решено использовать пустующие земли под крупные недорогие жилые кварталы, то есть микрорайоны, вместо дорогостоящего строительства в центре города.
Поскольку быстро развивающиеся промышленные технологии предполагали единообразие в строительстве, от индивидуального планирования пришлось практически отказаться.
В 1959 году в Советской России был основан первый ДСК — Домостроительный комбинат, и в будущем должно было появиться более 400 таких заводов.
Чтобы выполнить обещание «Каждой семье — отдельная квартира!», СССР пришлось строить как можно проще и компактнее; В то же время ожидаемый срок службы этих сооружений оценивался примерно в 20 лет.
Линия домов К-7 сдала первый и самый дешевый массовый пятиэтажный дом; На строительство такого дома ушло всего 12 дней. Конечно, у этого типа жилья были свои минусы — проходные комнаты и отсутствие балконов. Эти проблемы были пересмотрены и исправлены в более поздних версиях K-7.
9 квартал Новые Черемушки (1956–1958). Изображение предоставлено Джоном Уильямом Репсом, Библиотека изящных искусств, Корнельский университет В 1956 году в СССР проводился общенациональный конкурс на лучший проект экономически эффективных типов жилых домов.Был запланирован экспериментальный 9-й блок в районе Новые Черемушки и выставлен чертеж решений, представленных на этот конкурс.
Строительство нового квартала заняло 22 месяца; территория служила испытательным полигоном для 14 типов зданий (для каждого из них использовалась разная планировка и материалы) и имеет высоту до пяти этажей.
В стремлении компенсировать небольшие квартиры большое внимание было уделено просторным дворам. На этих площадях оборудованы специальные зоны отдыха, детские площадки, ландшафтный дизайн, ковровые покрытия, детские бассейны.Архитектурная планировка микрорайонов исключала сквозное движение, и в каждом квартале были свои ясли, детский сад, школа, столовая, магазины, кинотеатр, хозяйственный корпус, телефонная станция и гаражи.
1960-1980. Дома брежневской эпохи: та же тенденция, больше комфорта
В этот период больше внимания уделялось строительству многоэтажных домов, а также внедрению улучшенных типов жилья. В эту эпоху родились квартиры с 1-5 изолированными комнатами, в которых жили разные семьи.Кроме того, некоторые серии позволяли гибкую планировку квартир.
В конце 70-х годов повестка дня жилищной политики включала задачу восстановления и обновления довоенного и раннего послевоенного жилищного фонда. Гостиницы и общежития составили большую часть этих новых проектов. Однако жилищные проблемы по-прежнему остаются серьезной проблемой. В 1986 году с целью решения этой серьезной проблемы правительство приняло специальную программу под названием «Жилье-2000», но она так и не была реализована в полном объеме.
Северное Чертаново р-н. Изображение предоставлено glokaya_kuzdra / lori.ru Этот микрорайон состоял из 9- и 16-этажных жилых домов. В целях доступной инфраструктуры и комфорта архитекторы решили устроить входы во все объекты бытового обслуживания в вестибюлях или хотя бы в пешей доступности. Здания соединяли холлы первого этажа, поэтому передвигаться можно было практически, не выходя за пределы квартала. Внутренние переходы отведены исключительно для такси и скорой помощи, каждый дом имел собственную подземную парковку.
Проект также предлагал варианты встроенной мебели, а в одном из зданий пытались провести эксперимент с дуплексными квартирами.
1991—2018 гг. Современная эпоха: возвращение индивидуального дизайна и расширение масштабов
На этом этапе происходило формирование и развитие российского рынка жилья. Страна стала свидетелем великолепного возвращения как индивидуальных проектов развития, так и широкого использования декора. Постоянно ведется поиск планировок новостроек и квартир (студии, проекты с зонами общего пользования и т. Д.), — а в некоторых сериях жилья уже есть варианты возможной перепланировки.
Благодаря приватизации россияне вернули себе право приобретать и владеть жилой недвижимостью. Этот резкий сдвиг стал причиной новой важной тенденции на рынке жилья в России. Сегодня более 85% домов принадлежат частным лицам.
Предоставлено «Стрелкой» КБ В 90-е годы наша жилищная застройка принимала довольно беспорядочные и бессистемные формы. В отрасли, в которой в основном преобладают планы застройки с застройкой, значительно увеличилась доля частного и элитного жилья.
Затем, в 2000-е годы, в период интенсивного экономического роста, были реализованы несколько крупномасштабных проектов комплексного развития новых территорий.
В 1997 году, одновременно с новой жилищной реформой в России, было создано Агентство по ипотечному жилищному кредитованию. Год спустя государство представило правовую основу для ипотечного кредитования. В 2016 году ДОМ.РФ (бывшее Агентство ипотечного жилищного кредитования) и КБ «Стрелка» приступили к разработке документа под названием «Рекомендации по комплексному развитию территорий» — обе стороны движимы своим обязательством по внедрению и обеспечению комфортной городской среды в Россия.Одна из ключевых идей этих рекомендаций — отказаться от развития микрорайонов в пользу городских кварталов.
микрорайоны Южное Бутово и Северное Бутово. Изображение предоставлено Алексеем Михеевым / lori.ru Изначально районы Южное Бутово и Северное Бутово были застроены зданиями более ранних типов, и эти дома в основном предназначались и предоставлялись домохозяйствам, находящимся в очереди, или семьям социальных льгот.
Шаг за шагом развитие частного строительства продвигалось и расширялось — процесс сопровождался внедрением новой модернизированной серии планировок.Кроме того, в середине 1990-х годов в Бутовосе были размещены первые в нашей стране образцы таунхауса.
Из-за своего удаленности от центра города и, соответственно, большого расстояния до рабочих мест, район Бутово стал символом и общим термином для так называемых «спальных районов» — вместе с обузой. об их характерных проблемах: пригородная миграция, отсутствие общественных мест, неразвитость мелкой уличной торговли, ограниченные возможности для досуга и т. д.
Industrialized Building Speech, 1954 — Volume
О широком внедрении промышленных методов, повышении качества и снижении стоимости строительства
Выдержки из выступления Никиты Хрущева на Всероссийской конференции строителей, архитекторов, рабочих строительных материалов и производства строительного и дорожного машиностроения, сотрудников проектных и научно-исследовательских организаций 7 декабря 1954 г.
Товарищи!
Прошло много времени с тех пор, как мы в последний раз проводили Национальную конференцию строителей, и теперь существует большая потребность в такой конференции.Считаю, что нынешняя встреча пойдет на пользу не только строительству, но и всей нашей работе как в промышленности, так и в других отраслях нашего народного хозяйства. […]
Актуальные вопросы индустриализации строительства
[….] В настоящее время существуют условия для масштабной индустриализации строительства. Что это за условия? В первую очередь, сейчас у нас есть большой резерв квалифицированных рабочих и специалистов. В наших строительных организациях и промышленности по производству строительных материалов работают тысячи высококлассных мастеров и новаторов.У нас есть заводы, которые могут снабдить наших строителей современным оборудованием, облегчающим работу и повышающим производительность. Мы расширяем производственные мощности, которые позволяют нам поставлять в строительную отрасль сборные железобетонные конструкции, детали и строительные материалы. […]
Обширное расширение производства сборных железобетонных конструкций и деталей даст огромную экономическую выгоду. Наши строители знают, что до недавнего времени велись споры, по какому из двух путей идти в строительстве — использовать сборные конструкции или монолитный бетон.Не будем называть имен и упрекать тех рабочих, которые пытались направить нашу строительную отрасль на использование монолитного бетона. Думаю, теперь эти товарищи осознают, что принятая ими позиция была неправильной. Но теперь, кажется, всем ясно, что надо идти по более прогрессивному пути — по пути использования сборных железобетонных конструкций и деталей. (Аплодисменты.)
Каковы последствия использования монолитного бетона в строительстве? Повышенная грязь на стройплощадках.Использование форм любых видов и форм. Ненужный расход железа. Потери цемента. Потери инертных материалов и бетона.
А каковы последствия использования сборных деталей? Использование сборного железобетона позволит нам изготавливать детали, как это делается в растениеводстве, — позволит перейти на заводские методы строительства. (Аплодисменты.) […]
Стеновые панели и секции потолка / пола должны быть декорированы в заводских цехах. Эти продукты должны прибыть на строительную площадку уже готовыми, полностью готовыми к установке.В противном случае, какое преимущество мы получим от использования сборных конструкций, если мы изготовим деталь на заводе, установим ее на 8-м этаже, а затем начнем думать, как провести очистку или переработку ее поверхности?
Бетонные конструкции должны быть легкими, без лишнего веса. […]
Кирпич, основной строительный материал, всегда использовался и продолжает использоваться в тех случаях, когда строительство в основном ведется вручную. В таких случаях большое значение имеет вес материала, из которого сделаны стены, вес кирпича.В наше время — учитывая наличие бетона, электродвигателей, кранов и других механизмов — у нас нет оправдания продолжению использования старых методов работы. Всем известно, сколько времени и труда нужно, чтобы сделать кирпич. Глину приходится выкапывать из карьеров, обрабатывать глиняным молотком для производства сырцового кирпича. Затем этот материал сушат, загружают в печь, запекают, а готовые кирпичи отправляют на склад, вывозят на строительную площадку, поднимают на строительные леса и кладут на стену.И все это нужно делать много раз, манипулируя каждым кирпичом, как кусочками мозаики.
Вместо кирпича, не лучше ли сделать секции бетонной стены такого размера, который будет удобен для имеющихся в нашем распоряжении подъемных механизмов — то есть весом две, три, пять тонн? Преимущества использования секций — высокая производительность и высокая производительность. Неслучайно многие другие страны широко используют в строительстве бетон, а не кирпич. […]
Не может быть и речи об индустриализации строительства, если мы собираемся и дальше увеличивать количество строительных организаций.Конечно, все понимают, что малым, а следовательно, и слабым строительным организациям не под силу применять промышленные методы работы. Мы должны решительно укрепить наши строительные организации. Без этого не может быть и речи об индустриализации строительства.
Весьма поучительным в этом отношении является сокращение количества строительных организаций в Москве, где на базе 56 Моссоветских строительных трестов и различных министерств и ведомств была создана единая организация — Главмосстрой.Когда обсуждалось создание Главмосстроя, много говорилось о том, что Моссовет не сможет справиться с такой крупной организацией, и были опасения, что отстранение министерств может привести к срыву плана строительства жилых домов. Можно было предположить, что в течение первого года существования Главмосстроя возникнут какие-то организационные проблемы, которые могут помешать выполнению плана. Однако все подобные опасения оказались беспочвенными. […]
В нашей стране ведется широкомасштабное строительство промышленных предприятий, жилых домов, школ, больниц и других сооружений.Эта строительная программа имеет жизненно важное значение. Мы обязаны значительно ускорить, улучшить качество и снизить стоимость строительства. Для этого есть только один путь — путь самой широкой индустриализации строительства.
Устранение конструктивных недостатков; улучшение работы архитекторов
[…] Учитывая масштабы строительства промышленных предприятий, жилых домов, школ, больниц, объектов культуры и услуг, отсрочка в проектировании недопустима.Вся наша страна покрыта строительными площадками. Советское государство ежегодно выделяет на строительство много миллиардов рублей. Буквально каждый из нас заинтересован в том, чтобы строительные работы шли гладко. Недопустимо, чтобы строительные работы часто затягивались из-за медлительности наших проектных организаций и что иногда проектирование даже простых зданий длится два года или дольше.
Интересы индустриализации строительства диктуют необходимость реорганизации работы наших проектных организаций, превращения производства типовых проектов и использования уже существующих типовых проектов в качестве основного элемента в своей работе.[…]
Многие сотрудники проектных и проектных организаций недооценивают важность типового проектирования.
Доказательства этого можно увидеть в следующих фактах. Из 1100 строительно-проектных организаций в нашей стране только 152 частично занимаются изготовлением типовых проектов. С 1951 по 1953 год максимум один процент ресурсов, выделенных на проектные работы, уходил на изготовление типовых проектов. В 1953 г. только 12% от общего объема возведенных промышленных зданий было построено по типовым проектам.И в этом году ситуация немного улучшилась. […]
Все они [архитекторы] согласны с тем, что использование стандартных проектов значительно упростит и улучшит качество строительства, но на практике многие архитекторы, инженеры и — в промышленном строительстве — технологи тоже стремятся создавать только свои собственные проекты. от дизайнов.
Почему это происходит? Одна из причин, по-видимому, в том, что в том, как мы обучаем наших архитекторов, есть недостатки. Руководствуясь примером великих мастеров, многие молодые архитекторы, не дожидаясь, пока переступят порог своих архитектурных институтов или встанут на ноги, захотят спроектировать только уникальные постройки и поспешат поставить себе памятник.Если Пушкин создал себе памятник, «сделанный не руками человека», многие архитекторы считают, что просто должны создать себе памятник «ручной работы» в виде здания, построенного по уникальному проекту. (Смех, аплодисменты.) […]
Почему в настоящее время используется 38 типовых проектов школ? Это целесообразно? Причина этого, очевидно, в том, что многие рабочие подходят к своей работе в строительстве без оглядки на экономию.
Мы должны выбрать небольшое количество типовых проектов жилых домов, школ, больниц, детских садов, детских яслей, магазинов и других зданий и сооружений и проводить наши программы массового строительства, используя только эти проекты, в течение, скажем, пяти лет.В конце этого периода мы проведем обсуждение и, если не появятся лучшие проекты, продолжим в том же порядке в течение следующих пяти лет. Что плохого в таком подходе, товарищи?
[…] Я хочу поделиться с вами своими впечатлениями и комментариями о том, как работают архитекторы. Прежде всего хочу обратиться к президенту Архитектурной академии товарищу Мордвинову. Товарищ Мордвинов, мы часто встречались в Москве по вопросам работы. Я знаю Вас как хорошего организатора: Вы проявили себя в проекте строительства высокоскоростного ленточного конвейера при застройке Большой Калужской улицы.Строительство скоростного ленточного конвейера тогда велось впервые, и в нем участвовал товарищ Мордвинов. Однако после войны товарищ Мордвинов изменился. Он стал другим человеком. Как в песне из оперы «Царская невеста»: «Это не тот Григорий Грязнов, которого я знал!» (Смех, аплодисменты).
Общая черта строительства в этой стране — расточительство ресурсов, и для этого Большая часть вины лежит на многих архитекторах, которые используют архитектурные излишества для украшения зданий, построенных по разовым проектам.
Такие архитекторы — камень преткновения на пути индустриализации строительства. Чтобы строить быстро и успешно, мы должны использовать стандартные проекты в нашем здании, но это явно не по вкусу некоторым архитекторам …
Если архитектор хочет идти в ногу с жизнью, он должен знать и уметь использовать не только архитектурные формы, орнаменты и различные декоративные элементы, но и новые прогрессивные материалы, железобетонные конструкции и детали, и, прежде всего, необходимо уметь экономить в строительстве.И вот за что на конференции критиковали товарища Мордвинова и многих его коллег — за то, что они забывают о главном, то есть о стоимости квадратного метра площади при проектировании здания, и за увлечение ненужными украшениями. фасадов, допускающих большое количество лишних деталей.
Фасады жилых домов порой завешаны множеством всяческих лишних украшений, что свидетельствует об отсутствии вкуса у архитекторов. Строители иногда даже затрудняются выполнить эти украшения.
В этом вопросе большое влияние оказало строительство многоэтажных домов. При проектировании таких зданий архитекторы в основном интересовались созданием силуэта и не думали о том, во что обойдется строительство и эксплуатация этих зданий.
Если стене придают сложный контур просто в целях благоустройства, это приводит к ненужным расходам на использование здания из-за больших потерь тепла. По этой причине превышение ежегодных затрат на топливо для дома, например, на Смоленской площади, составляет 250 000 рублей.Это для одного здания отдельно.
Приведу несколько цифр пропорций площади этажей в многоэтажных домах.
Общая площадь: 100%.
Здание на Красных воротах
рабочих помещения 28,1%
подсобных помещения 23,1%
Инфраструктура и услуги 14,9%
строительство 33,9%Здание на Смоленской площади
рабочих помещения 30%
подсобных помещения 24%
Инфраструктура и услуги 11%
строительство 35%
Эти цифры ясно показывают, насколько мало места в высотных зданиях занято основными функциями и сколько отводится так называемым «строительным сооружениям».Под «строительными конструкциями» мы подразумеваем стены и другие конструкции. В многоэтажных зданиях такое пространство намного превышает норму в результате упора на создание впечатляющих силуэтов. Это пространство, на которое можно только смотреть; не для проживания и работы. (Оживленная реакция, смех, аплодисменты.) […]
Когда говорил товарищ Мордвинов, я спросил его, сколько стоит высотная гостиница «Украина», архитектором которой он был. Надо сказать, что товарищ Мордвинов не отстает, а идет в ногу с теми, кто допускает излишества в архитектурном оформлении зданий.Стоимость квадратного метра площади, занимаемой основными функциями в гостинице «Украина», составляет 175 процентов от стоимости такой площади в гостинице «Москва».
Неужели допустимо, чтобы в одном и том же городе — Москве — разница в стоимости строительства жилых домов разных авторов составляет 600-800 рублей за квадратный метр жилой площади. […]
У некоторых архитекторов есть страсть к добавлению шпилей на верхушки зданий, которые придают этой архитектуре церковный вид.Вам нравятся силуэты церквей? Не хочу спорить о вкусах, но для жилых домов такой внешний вид не нужен. Нельзя использовать архитектурный декор, чтобы превратить современный жилой дом в нечто похожее на церковь или музей. Это не создает дополнительных удобств для жителей, а просто удорожает эксплуатацию здания и увеличивает его стоимость. И все же есть архитекторы, которые не учитывают это.
Архитектор Захаров, например, представил планы развития Большой Тульской улицы в Москве со строительством домов, очертания которых мало отличаются от церквей.На просьбу объяснить, почему он так поступает, он ответил: «Наши проекты вписываются в многоэтажные дома; мы должны показать силуэты зданий ». Вот что, оказывается, больше всего беспокоит товарища Захарова: ему нужны красивые силуэты, а людям нужны квартиры. У них нет времени восхищенно разглядывать силуэты; им нужны дома, чтобы жить! (Аплодисменты). В своих проектах домов на Люсиновской улице Захаров решил поставить скульптуры по углам своих домов, начиная с 8 этажа.На верхнем этаже он срезал углы, и в этих наклонных углах поставил окна, за пределами которых, на подоконниках, должны были стоять скульптуры. Пятистенная комната с угловым окном неудобна для проживания, не говоря уже о том, что обитатели этой комнаты должны всю жизнь смотреть на заднюю часть скульптуры. Конечно, в такой комнате жить не особо приятно. Хорошо, что эти дома так и не были построены и что товарищ Захаров был удержан от своего искусства.
И все это называется архитектурным и художественным оформлением зданий! Нет, товарищи, это архитектурное извращение, которое приводит к порче материалов и неоправданной трате средств. Московские организации приняли правильное решение, сняв товарища Захарова с поста руководителя архитектурной мастерской. Но для всеобщего блага это следовало сделать гораздо раньше. […]
Серьезные ошибки, допускаемые проектными организациями и отдельными архитекторами, во многом объясняются неправильными рекомендациями Академии архитектуры и многих ведущих архитекторов.Рассмотрим руководство, которое давалось до недавнего времени:
Президент Академии архитектуры А.Г. Мордвинов в статье «Художественные проблемы в советской архитектуре», опубликованной в №1 «Архитектура» (1945), пишет:
«Архитектура служит цели удовлетворения эстетических потребностей людей … создание важных архитектурных произведений требует конструктивных объемов, не продиктованных прямой практической необходимостью (портики, монументальные залы, башни)… Я сомневаюсь, что существует хоть один город, который, если он хочет быть красивым, может обойтись без высотных композиций.’
Профессор А.В. Бунин в своей статье «Об использовании городского наследия в послевоенном реставрационном строительстве», также опубликованной в вышеуказанном сборнике, утверждает:
«Чтобы украсить город, нужны целые здания, в том числе с куполами и башнями. — которые не оправдываются какой-либо утилитарной функцией… Советский город переживает кризис вертикального развития… Центры городов с их общественными зданиями, башнями, купольными сооружениями должны быть уникальными по дизайну, без всякой стандартизации.’
Я мог бы привести еще много примеров таких высказываний. […]
Некоторые архитекторы пытаются оправдать свои неправильные принципы и излишества в своих проектах, ссылаясь на необходимость борьбы с конструктивизмом. Но борьба с конструктивизмом — это флаг, которым размахивают, чтобы скрыть растрату государственных ресурсов.
Что такое конструктивизм? Вот как, например, Большая советская энциклопедия определяет эту тенденцию: «Конструктивизм…. заменяет художественное творчество «исполнением построек» (отсюда и название «конструктивизм»), т.е.е. голая техничность. Призывая публично к функциональной, конструктивной «целесообразности» и «рациональности», конструктивисты фактически двигались в направлении эстетического восхищения формой, оторванной от содержания … Следствием этого стал типичный антихудожественный, депрессивный «стиль коробки». современной буржуазной архитектуры… Примеры конструктивизма подвергались резкой критике во многих директивах и постановлениях партии… »(Большая Советская Энциклопедия, 1953, т. 22, с.437)
Это определение конструктивизма, конечно, не является исчерпывающим. Но даже такая характеристика конструктивизма показывает банкротство некоторых архитекторов, которые, прикрываясь фразами о борьбе с конструктивизмом, фактически приносят жертвы фасадам, то есть форме, удобству внутреннего плана этажа и эксплуатации здания, и тем самым проявляют пренебрежение к насущным нуждам людей.
Некоторые архитекторы, отстаивающие необходимость борьбы с конструктивизмом, виноваты в обратном: они украшают фасады зданий лишними, а иногда и совершенно ненужными декоративными элементами, требующими затрат государственных средств.
Эти архитекторы называют здания, не имеющие башен, надстроенных портиков или колонн или фасады которых не украшены фрагментами сценических декораций, «коробками»; и они обвиняют их в возвращении к конструктивизму. Таких архитекторов, возможно, можно было бы назвать «конструктивистами наизнанку», поскольку они сами находятся на скользком пути к «эстетическому восхищению формой, оторванной от содержания». […]
Борьба с конструктивизмом должна вестись разумными средствами. Мы не должны увлекаться архитектурным декором или эстетическим украшением, а также не должны венчать наши постройки совершенно неоправданными башнями и скульптурами.Мы не против красоты, но против излишеств. Фасады зданий должны иметь красивый и привлекательный внешний вид, и это должно быть достигнуто за счет правильных пропорций всего здания, правильных пропорций оконных и дверных проемов, удачно расположенных балконов, правильного использования текстуры и цвета облицовки. материалы, а также правильное оформление стеновых частей и конструкций в зданиях из крупных секций и панелей. […]
В этой связи хочу рассказать о тех впечатлениях, которые у нас сложились после нашей конференции в Свердловске.Свердловск — большой красивый город, в котором очевидна мощь Советского Союза. Здесь есть важные заводы, производящие прекрасное оборудование. Но что касается городского строительства и благоустройства, то у этого крупного центра есть серьезные недостатки. Например, при реконструкции здания горисполкома главный фасад был снабжен башней и шпилем. Строительство одного только шпиля обошлось почти в два миллиона рублей, а реконструкция всего здания — в девять миллионов. Большая часть этих расходов, вероятно, была связана с работами по подготовке фасада высотной части здания и строительству башни.Денег, потраченных на строительство шпиля, хватило бы на строительство двух школ на 400 учеников каждая.
На одной из улиц Свердловска большое пятиэтажное здание.
— «Это мельница», — объяснил нам секретарь обкома товарищ Кутырев, а затем добавил: «Но мы хотим построить новую мельницу и превратить это здание в гостиницу».
— «Преобразовать. — как? »- спросили мы его.
— «Да», — сказал товарищ Кутырев. «Наш план — переоборудовать его в отель.
— «Но зачем перестраивать мельницу под гостиницу?» — сказали мы ему. «Не лучше ли построить новую гостиницу?»
Судите сами. Неужели есть смысл переоборудовать здание, которое сейчас используется как мельницу, в гостиницу, а затем построить совершенно новую мельницу? (Смех, аплодисменты).
На эти деньги можно было бы построить новую хорошую гостиницу, которая будет лучше и дешевле. Где здравый смысл, где экономическая целесообразность?
Далее мы продолжили путь по Свердловску. Секретарь обкома сказал:
«Эту дорогу мы тоже думаем переделать.
— «И что вы хотите с ним делать?»
— «Гудронемашина».
Дорожное полотно было выложено гранитным булыжником. Он переживет наших внуков, а асфальт не протянет больше десяти лет. Почему, спросим мы, желание портить проезжую часть из гранита?
Когда мы подъехали к зданию обкома партии, секретарь комитета объявила:
— «Вот и здание нашего комитета. Думаем реконструировать его ».
-« Какая реконструкция? Для чего? »
-« Нам не нравится фасад.Его необходимо полностью изменить ».
Что означает «изменилось»? Сколько будет стоить переделка шестиэтажного дома? Очевидно, что дешевле построить новое здание, чем реконструировать старое.
Когда слышишь предложения такого рода, невольно вспоминаешь, как Щедрин высмеивал губернатора, который сносил все, что построил его предшественник. Оказывается, привычки, над которыми высмеивал великий русский сатирик Щедрин, живы и сегодня среди нас! (Аплодисменты.) […]
Повышение качества: важнейшая задача, стоящая перед нашими строителями
Товарищи! Особое внимание следует уделить повышению качества строительства.Мы должны строить не просто быстро, но неизменно хорошо и надежно, и мы должны дорожить своей репутацией строителей. Постройки должны быть удобными для проживания и удобными в эксплуатации. Плохо построенные здания необходимо ремонтировать через короткие промежутки времени, а это значит, что придется тратить дополнительные деньги. Это касается всех типов строительства.
Прежде всего, хочу сказать о качестве строительства жилых домов. Хорошо ли сделаны стены и потолки наших зданий? Я думаю, они сделаны очень хорошо.В наших жилых домах, школах, больницах и других зданиях стены и потолки построены таким образом, что они будут выполнять свои функции в течение сотен лет. В этом не может быть никаких сомнений, поскольку для строительства мы используем железобетон. Но надо сказать, что отделка зданий часто делается плохо. Более того, многие рабочие мирились с явно недобросовестной работой по отделке зданий. Об этом справедливо говорили многие товарищи на конференции.
Недавно нам с товарищами Булганиным и Микояном пришлось побывать во многих городах Дальнего Востока, Сибири, Урала. За нами хорошо ухаживали. Что и понятно — учитывая, что мы требовательны к гостям и имеем право критиковать — а на самом деле делаем даже больше, чем просто критикуем. Естественно, они пытались обеспечить нам лучшие условия. (Смех, аплодисменты). В Свердловске мы жили в гостинице. Этот отель был хорошо построен. Надо полагать, нам дали отнюдь не самые плохие комнаты.(Смех). И в этом отеле мы увидели, что блоки ванной и туалета построены очень плохо, а качество декоративных работ оставляет желать лучшего. Мы спросили директора отеля и руководителей города и сказали им: «Посмотрите, какая у вас плохая работа!»
Очевидно, при строительстве не было требований к соблюдению стандартов. Качество плитки было плохим, и она была уложена небрежно. Трубы в туалетах и ванных комнатах были покрыты ржавчиной и были спешно покрашены какой-то серой краской перед нашим приездом, при этом на стены попало еще больше краски.Соединение труб было очень плохим, и я, как бывший сантехник, очень возмутился: даже в революционные времена соединения труб в шахте делались лучше и чище, чем в этой гостинице в Свердловске. […]
Строителям нужно рассказать о таких недостатках — а их много — и посоветовать кардинально улучшить качество своей работы. Товарищ Юдин, министр промышленности строительных материалов, и другие рабочие, занятые в промышленности строительных материалов, не должны впадать в ярость, а должны учиться у наших друзей в Чехословакии, которые делают прекрасные строительные материалы и детали.(Аплодисменты.) Они также могут поучиться у ГДР, где производят прекрасную облицовочную плитку. Надо сразу сказать, что одни товарищи слишком мало учатся у других и, что более важно, даже не желают учиться. (Аплодисменты.) […]
Особое внимание следует уделить повышению качества панелей из дерева. Во многих домах плохо сделаны оконные фрамуги и двери. А вы знаете, когда кто-то входит в дом, он прежде всего замечает дверь — насколько хорошо она закрывается, есть ли в ней щели, как она окрашена.Он также смотрит, как сделаны окна и какова их фурнитура. Надо постоянно и настойчиво работать над улучшением качества отделочных работ. В жилых домах лестничные клетки также должны быть хорошо декорированы.
Еще многое предстоит сделать для улучшения качества звукоизоляции в домах. Особенно нужны работы по утеплению между квартирами; это должно быть безупречно. В этом случае необходимо убедиться, что стены между квартирами и между разными этажами соответствуют требованиям звукоизоляции.[…]
Необходимо расширить производство линолеума. Полы, покрытые линолеумом, ничем не хуже паркетных; они гигиеничнее и умнее. За такими полами легче ухаживать, чем за паркетом. Все знают, что паркетные полы нужно покрывать воском — дело сложное и требует дополнительных затрат. Мы должны ценить женский труд и делать все возможное, чтобы облегчить его. […]
Для отделки наружных стен зданий лучшим материалом является керамическая плитка. Керамическая облицовка долговечна, эстетична и не меняет цвет при использовании.[…]
[…] Главное, чтобы был соблюден порядок: ни одно строительство не должно начинаться без архитектурного проекта, без сметы или без детального плана. (Аплодисменты.) А что сейчас происходит на практике? Как только было принято решение что-то построить, приходит отчет о начале строительства. И нет даже архитектурного плана здания. Хорошо известно, что перед началом строительства площадка должна быть хорошо подготовлена, дороги, подведены вода и электричество, а также составлены полные архитектурные планы […]
Мы очень много теряем из-за того, что наши строительные площадки не получают металл и другие материалы в нужном ассортименте.Приведу два примера, но строители могут создавать такие примеры без конца. Проволока диаметром 5,5 мм нужна для железобетона. Строители говорят: берите проволоку на 1 мм шире в диаметре. Вы можете подумать, что в этом нет никакой разницы — всего один миллиметр, из-за которого не стоит драться. И все же в 1953 году в случае строительства, проведенного Министерством строительства, этот миллиметр привел к использованию дополнительных 4800 тонн металла. Это та фигура, за которую борется Госплан — и это правильно.Так вот, товарищи, сколько стоит этот миллиметр […]!
Повышение производительности труда, создание предложения квалифицированных строителей
[…] Хорошо известно, что в строительном секторе есть много возможностей для повышения производительности труда и, как следствие, увеличения заработной платы рабочих. Такое место можно найти в механизации строительных работ; правильное использование мощного оборудования, имеющегося на наших строительных площадках; переход на промышленные методы строительства; повышение квалификации рабочих; более эффективное использование передового опыта, накопленного новаторами; и усиление производственной дисциплины.[…]
Для повышения реальной заработной платы работников необходимо обеспечить рост производительности труда и рост заработной платы на дому каждого работника.
Есть много примеров, которые убедительно доказывают имеющиеся возможности для повышения производительности труда и повышения заработной платы рабочих. Вот один из таких примеров. Я сравню две школы из многих, построенных в Москве в 1954 году — одну в Томкмаковском переулке, построенную из кирпича; другой, в Кутузовской слободе, построен из больших блоков.Обратите внимание на разницу в объеме труда, необходимом для двух школ. 7360 человеко-дней было затрачено на кладку кирпичных стен и карнизов, потолков и полов, лестниц и перегородок, в то время как та же работа в здании из крупных блоков потребовала 1780 человеко-дней, или только 24% от количества человеко-дней, потраченных на школу из кирпича. Средняя заработная плата рабочего за указанные виды работ в школе из кирпича составляла 268 руб. За человеко-день, а в блочной школе — 1432 руб., Т.е.е. В 5,3 раза больше. Если рассматривать все виды работ, выполняемых в кирпичной школе, то оплата за человеко-день составила 142 рубля, а во второй школе — 261 рубль, т.е. в 1,8 раза больше. Что касается использования кранов, то при строительстве первой школы задействовано 314 машино-смен; а для второго потребовалось 164, или 54%. Вот здесь, товарищи, есть место для роста производительности труда и повышения заработной платы! […]
Товарищи! Завершу свое выступление выражением уверенности в том, что строители, архитекторы, инженеры, рабочие промышленности строительных материалов, машиностроительной и дорожной техники, работники проектных и научно-исследовательских организаций будут выполнять свои функции с полной отдачей. выполнять задачи, поставленные перед ними партией и правительством; еще больше повысит уровень, темпы и качество строительства в нашей стране; ускорит ввод заводов, шахт, электростанций и мануфактур; и будет строить дома, школы и больницы лучше и красивее.До свидания до новой встречи на следующей конференции строителей. Желаю дальнейших успехов, товарищи! (Дикие, непрерывные аплодисменты. Все встают)
Россия и «Жилищный вопрос»
Два диспетчера поезда Golden Eagle Trans-Siberian Express — из Иркутска, и их глубокое знание города привело к тому, что наши гости предложили новый вариант — посетить русскую семью дома. За чаем и домашним яблочным пирогом хозяйка Татьяна с радостью ответит на любые вопросы о жилье и других аспектах повседневной жизни как в советском прошлом, так и в российском настоящем.Слушая вопросы и ответы, я часто думал, что некоторые предварительные знания о жилищной ситуации в Советском Союзе и России, а также об условиях жизни в целом могут помочь нашим гостям получить больше от этого исключительного опыта. Таким образом, следует разрушение жилищного кризиса в Советской России на протяжении большей части двадцатого века.
Жилищный вопрос: Фридрих Энгельс
Жилье было серьезным кризисом на протяжении всей советской истории. Фактически это предшествовало Октябрьской революции; Промышленное развитие в конце 19 века привело к тому, что рост городского населения сосредоточился в небольшом количестве отчаянно перенаселенных городов.В то время как аристократы и руководители фабрик владели роскошными квартирами и таунхаусами, рабочие жили в фабричных общежитиях, бараках, углу чужой комнаты или « койке и чулане » — кровати и крошечном шкафу в комнате, разделенной на столько же эти крошечные сегменты насколько это возможно.
Такие условия жизни не соответствовали социалистическим идеалам большевиков. Друг и соратник Карла Маркса Фридрих Энгельс, чья семья владела хлопчатобумажной фабрикой недалеко от Манчестера, настаивал на том, что с нехваткой жилья в этом городе можно немедленно справиться посредством « экспроприации нынешних владельцев и размещения в их домах бездомных рабочих или рабочих, переполненных жильем ». их нынешние дома »[1].Конечно, этого не могло произойти в капиталистической Британии, но после Октябрьской революции большевики применили решение Энгельса к российским городам. Если им повезло, бывшим хозяевам разрешалось продолжать жить в одной или двух комнатах, а в остальных жили посторонние люди, и из совершенно другого сословия. Как заметил Ричард Стайтс, «два типа людей […] с двух разных планет» теперь делили жизненное пространство [2].
В попытке возродить экономику после разрушительной гражданской войны была введена так называемая новая экономическая политика, которая позволила развить смешанную экономику.Крупные фабрики и основные отрасли промышленности оставались в руках государства, но теперь были разрешены небольшие частные предприятия. Эта небольшая приватизация распространилась на жилье, и небольшие дома были возвращены их владельцам. Однако политика «сжатия» — обеспечение максимального использования ограниченного жилого пространства — означала, что владельцы по-прежнему были вынуждены делиться своим жилым пространством с другими, хотя, по крайней мере, теперь они могли собирать ренту.
Изначально конечная цель заключалась в том, чтобы люди жили в «домашних коммунах».Они продвигались как по практическим, так и по идеологическим причинам: они были бы дешевле, чем предоставление каждому отдельного жилья, и поощряли бы новый общинный образ жизни. Они также освободят женщин от домашнего рабства, что важно, поскольку равенство женщин является центральным элементом социализма. Некоторые из наиболее радикальных коммунистов хотели, чтобы детей воспитывали отдельно от родителей, в отдельных домах или даже в отдельных деревнях. Этого не произошло в Советской России — но идеи были реализованы русскими эмигрантами в Палестине, а затем и в Израиле в форме кибуца.Некоторые идеалистические коммуны действительно возникли в России, в основном из студентов и молодых рабочих. Немецкий посетитель страны в 1920-х годах Клаус Менерт наткнулся на одну радикальную коммуну, члены которой были полны решимости искоренить все аспекты опасного индивидуализма: «Если коммунар предпочитает носить свое нижнее белье, это будет охарактеризовано как отступление. в самый темный капитализм; как предрассудок, берущий начало в мелкобуржуазной идеологии »[3].
Сталинская эпоха
Вход в квартиру Татьяны сталинской эпохи в ИркутскеКогда Сталин стал советским лидером в конце 1920-х годов, произошел огромный идеологический сдвиг.Новая экономическая политика была прекращена, а вместе с ней и почти всем формам частной собственности. Тем не менее, к концу первого пятилетнего плана приверженность правительства общественной жизни также закончилась. Одна из причин заключалась просто в том, что в социальных вопросах Сталин был консервативным и условным; он не одобрял вызов коммуны традиционным семейным и гендерным ролям. Что еще более важно, его массовая индустриализация привела к огромным социальным потрясениям, которые включали вызывающее беспокойство падение рождаемости и рост «хулиганства».Была надежда, что старомодные семьи будут функционировать как «островки стабильности в море социального хаоса» [4].
Индустриализация потребовала огромного увеличения городского населения, которое все должно было быть размещено. Поскольку ресурсы страны в основном вкладывались в промышленность, их не хватало ни на что, кроме рудиментарного жилья. Несмотря на реабилитацию семьи, только новая сталинская элита могла иметь собственные квартиры на одну семью. Типом жилья, который характеризовал сталинскую эпоху, была эвфемистически названная «коммунальная квартира», в которой каждая комната была занята отдельной семьей, каждая из которых делила кухню и стиральную машину.По крайней мере, один из жителей должен будет сообщать властям о мнениях и действиях своих соседей. Попытки пообщаться редко предпринимались; женщины не готовили вместе, и отвращение семей к совместной жизни ясно из того факта, что в большинстве квартир у каждой семьи был собственный унитаз, свисающий со стены.
Хрущевки
После смерти Сталина новый лидер Никита Хрущев решил разрешить жилищный кризис.Он запустил грандиозную жилищную программу, цель которой — обеспечить каждую семью собственной квартирой в течение 12 лет. Он признал, что эти новые квартиры не будут высшего качества, но «решать вам; Тысячу хороших квартир строите или семьсот очень хороших? И гражданин предпочел бы согласиться на приличную квартиру сейчас или подождать 10-15 лет, чтобы получить очень хорошую? »[5]. То, что стало известно как « хрущевки », представляло собой почти идентичные сборные бетонные многоквартирные дома, обычно пятиэтажные (не было ни технологий, ни денег для строительства лифтов, и было ограничение на количество лестничных пролетов, с которыми могла справиться женщина. если она несла тяжелые сумки для покупок), полных маленьких квартир, в которых можно было разместить только «многофункциональную» мебель: диваны и мягкие кресла, которые превращались в кровати, шкафы, за которыми скрывались откидные столики.В хрущевскую эпоху ежегодно строилось 2,2 миллиона «единиц жилья» (квартир), что меняло как облик советских городов, так и жизнь счастливчиков, но даже этого было недостаточно для удовлетворения спроса.
Хрущев был свергнут в 1964 году, и Леонид Брежнев занял пост лидера Советского Союза. Программа жилищного строительства продолжалась, и новые технологии означали, что теперь стали возможны подъемники и, следовательно, небоскребы. Тем не менее, новых квартир для удовлетворения спроса по-прежнему не хватало, а коммунальные квартиры оставались важным элементом городской жизни.
Эпоха Горбачева: разоблачение жилищного кризиса
Масштабы жилищного кризиса не признавались публично до тех пор, пока Горбачев не пришел к власти в 1985 году, когда его политика «гласности» (открытости) показала огромные социальные проблемы страны. В 1986 году выяснилось, что каждая пятая семья в Советском Союзе, всего около восьми миллионов человек, стояла в очереди на получение лучшего жилья. В 1987 году эта цифра выросла до девяти миллионов, а в 1989 году 17 процентов населения по-прежнему проживали в коммунальных квартирах или общежитиях или не имели постоянного места жительства.Молодожены обычно должны были начинать супружескую жизнь с теми или иными родителями; в среднем им пришлось бы ждать собственной квартиры 20 лет [6]. Представлена обновленная версия хрущевского залога. Теперь к 2000 году у каждой семьи будет своя квартира. Как оказалось, к тому времени Советский Союз уже давно перестал существовать.
Как распределялось жилье среди граждан в Советском Союзе? Небольшая сумма находилась в руках местного самоуправления, но в подавляющем большинстве случаев она выделялась людям по месту работы.Это преднамеренно привязывало людей к работе.
В 1989 году были сделаны первые шаги к приватизации жилья: арендаторам было предоставлено право покупать свои квартиры по очень низкой цене. Одной из причин такой очевидной щедрости было облегчение бремени обслуживания стареющих и ветхих жилых домов. Арендаторы это видели, и мало кто воспользовался предложением.
Советский жилой дом в Иркутске, РоссияПриватизация жилья
Приватизация всей государственной собственности была ключевой особенностью режима Бориса Ельцина, и жилье должно было быть включено в этот процесс.Освобождение государства от бремени содержания было не единственной причиной. Также считалось, что домовладение было «признаком стабильного общества и хорошо функционирующей рыночной экономики» [7]. Это создаст «группу заинтересованных сторон», которые помогут построить «стабильное, цивилизованное, процветающее общество» [8]. Чтобы побудить неохотных арендаторов приватизировать свои квартиры, с 1991 года им давали их бесплатно — и в качестве дополнительного стимула права аренды тех, кто не смог приватизировать, будут значительно ограничены.Это сработало. К 1995 году 53% жилья находилось в частной собственности; к 2007 году этот показатель превысил 70 процентов.
Приватизация привела к уникальной для России форме «высвобождения капитала». К пожилой женщине, не имеющей иждивенцев, может обратиться кто-то, предлагающий ей ежемесячную стипендию на всю оставшуюся жизнь, если она завещает свою приватизированную квартиру этому человеку. В некоторых случаях это работало очень хорошо; мой друг заключил такую договоренность с бывшей актрисой, жившей в квартире в центре Москвы, и в конце концов унаследовал ее квартиру.Старуха повесила на жизнь цепко и мой друг заплатил гораздо больше, чем она ожидала, но в целом она работала хорошо для них обоих. Однако журналы и газеты изобиловали историями о пожилых женщинах, жизнь которых была оборвана недобросовестными людьми, которые не собирались ждать, пока они умрут, прежде чем они доберутся до своих квартир.
Со временем перепродажа и сдача в аренду приватизированных квартир в сочетании с крупной программой строительства (в основном элитного жилья) в крупных городах привели к появлению большого рынка частного жилья.Большинство людей, у которых не было квартиры для приватизации, каким-то образом находили деньги, чтобы купить ее сразу; существовала ипотечная система, но большинство людей отталкивали как страх банковской нестабильности, так и чрезвычайно высокие процентные ставки.
Приватизация жилья пошла на пользу России? С положительной стороны, люди, у которых были квартиры, которые они могли приватизировать, находятся в уникальном положении, поскольку они получили собственное жилье, не неся огромных долгов. Есть также некоторые признаки того, что владение жильем привело к тому, что люди почувствовали, что теперь они более заинтересованы в жизни общества и, следовательно, более ответственны за окружающую среду.Однако приватизация вынудила возложить расходы на техническое обслуживание на людей, которые не всегда могут позволить себе их оплатить, что привело к усилению ветхости жилищного фонда. По данным одного российского эксперта по жилищному строительству, ежегодно около 150 000 квартир становятся непригодными для проживания людей [9].
Татьяна в своем доме в ИркутскеПоскольку люди могли приватизировать только жилье, в котором они жили, это высветило неравенство, существовавшее ранее в распределении жилья. Те, у кого были хорошие апартаменты, оказались в очень привилегированном положении; Те, у кого была только комната в коммунальной квартире, теперь застряли в ней и больше не могли связывать свои надежды на лучшее жилье с медленным продвижением в очереди на квартиру.Социальное жилье больше не вариант; он доступен только малоимущим (малоимушие) и определенным категориям людей, например ветеранам войны. В советское время жилье использовалось как награда, наказание и поощрение. В современной России это во многом вопрос удачи.
Каким образом жилищный опыт Татьяны вписывается в эту историю? Ее квартира находится в сталинском доме, поэтому у нее большие комнаты и более высокие потолки, чем при Хрущеве и Брежневе.
Нет необходимости в компактной многофункциональной мебели хрущевской эпохи; Действительно, у Татьяны достаточно места для художественных работ, украшений и сувениров из своих путешествий, которые она явно любит.Как и все городское жилье в Советском Союзе, в советские времена квартира принадлежала государству, а в конце сталинской эпохи была передана ее отцу; сейчас он приватизирован. В настоящее время Татьяна делится им с внуком, который учится в Иркутском университете. Как ее семье досталась такая приятная квартира? Как она относится к переменам, произошедшим в ее жизни? Есть ли у нее ностальгия по советскому прошлому? А что ее внук, родившийся после распада Советского Союза, думает о сложной истории своей страны? Чтобы узнать это, вам нужно будет посетить квартиру Татьяны!
Посещение квартиры Татьяны включено в тур «Свобода выбора» на все летние рейсы Золотой Орел Транссибирский экспресс.Пожалуйста, просмотрите маршрут для деталей.
Для получения дополнительной информации о советском жилье см. Д-р Линн Эттвуд, Гендер и жилье в Советской России (Manchester University Press, 2010).
Список ресурсов:
1. Цит. По В.И. Ленин в Избранных произведениях (Издательство Прогресс, 1977).
2. Ричард Стайтс, Революционные мечты (Oxford University Press, 1989).
3. Менерт К. Молодежь в Советской России (Аллен и Анвин, 1933).
4.Г. В. Лапидус, Женщины в советском обществе (Издательство Калифорнийского университета, 1979).
5. Н.С. Хущев, Хрущев помнит (Андре Дойч, 1974).
6. J.G. Чепмен, «Изменения в советском общественном договоре», в Дж. Адаме (ред.) «Экономические реформы и системы социального обеспечения в СССР, Польше и Венгрии». (Издательство Св. Мартина, 1991).
7. Р. Вихавайнен, «Жилье в России — политика и практика», презентация на семинаре в Санкт-Петербурге 24-26 апреля 2005 г.
8. П. Старобин и О. Кравченко, «Средний класс в России», в Businessweek онлайн, 16 октября 2000 г.
9. М. Хаммер, «Россия: Нерегулируемая приватизация жилья в России угрожает усугубить жилищный кризис», интервью с Э. Шомина для журнала Global Tenant: International Union of Tenants, Quarterly Magazine, июнь 2007 г.
Недостаток перепланировки в том, что уменьшается площадь прихожей, но зато в гостиной теперь удобно расположить шкаф-купе, тем более, что место для вешалки и полки под обувь в прихожей найдется.
Замена ванны на душевую кабину позволяет разгрузить пространство и установить стиральную машину.
Например, на этом плане можно увидеть, что в дальнем углу гостиной поставили кровать и прикроватную тумбу. Зона спальни отделена частичной перегородкой, чтобы оставить доступ для естественного освещения, так как спальня без окна. Кухонная и обеденная зона объединены единой столешницей. Проведено зонирование при помощи напольного покрытия. Есть места для хранения как в прихожей, так и в гостиной.
м