Перепланировка хрущевки 4 комнаты: дизайн переделки квартиры с фото
типовые варианты проектов 1-2-4-комнатной квартиры, идеи ремонта
За вторую треть XX века десятки миллионов людей переехали из сельских изб и единичных комнат в общежитиях и коммунальных квартирах в отдельное жилье. Тогда это был грандиозный прорыв, но уровень требований за последние десятилетия резко возрос. И комфортная жизнь уже далеко не исчерпывается центральным отоплением, холодной и горячей водой, газоснабжением. Квартиры- «хрущевки», построенные в 1950-х-1960-х годах отличаются не слишком совершенной планировкой, по большей части, но исправить эту проблему при должном старании не составит труда.
Особенности зданий
Панельные пятиэтажки вовсе не были оригинальным изобретением, в них соединились тенденции, разработанные в Германии (компактные дома) и США (блочное домостроение). Строительство домов первых серий вместе с отделочными работами занимало примерно 50 дней, максимальное удешевление и ускорение строительства достигалось за счет небольшой толщины несущих стен. В конструкциях не было предусмотрено использование лифтов, поскольку считалось, что здоровый человек способен подниматься на пятый этаж и спуститься с него самостоятельно. Из части проектов убирались балконы, на кухни отводилось от пяти до семи квадратных метров.
Газобетон, керамзитобетон, несмотря на свою неплохую прочность, не обеспечивают приличного уровня звукоизоляции и слабо держат тепло. Кирпичные пятиэтажные здания способны прослужить 90-100 лет, однако, это достижимо только при условии качественного, своевременного капитального ремонта и технического обслуживания.
Улучшенная планировка – это наличие балконов, и другие усовершенствования, введенные в проекты хрущевского периода начиная с середины 1960-х годов и позднее (до прекращения такого строительства совсем в 1985 году).
В большинстве случаев проектировщики уже заботились и о раздельных санузлах. Потолки в высоту могли достигать трех метров, хотя типичны все же невысокие, до 250 см. Проходные комнаты все равно присутствуют обязательно, это «родовая черта» всего жилья описываемой категории.Угловые комнаты с двумя окнами – наиболее холодное место во всем доме зимой. Зато неоспоримым преимуществом такой недвижимости является приличная освещенность помещения.
Целесообразно в подобных однокомнатных квартирах добиваться максимальной симметричности освещения. Установка мягкой мебели способна значительно повысить уровень повседневного комфорта.
Разделяющие смежные комнаты стены (перегородки) не отличаются особою прочностью. Потому использовать их для подвешивания тяжелых предметов и даже загруженных полок невозможно. Зато снос при выполнении перепланировки значительно упрощается и ускоряется.
Описание квартир
Двухкомнатная квартира в типовых проектах раннего периода встречается намного чаще, чем однокомнатная. Тем не менее круг проблем одинаков: площадь мала, комнаты расположены как попало, есть проходные помещения. Если в квартире предусмотрено две комнаты, ее площадь колеблется от 41 до 46 квадратных метров, а однокомнатные делались размером 30-31 м2. Независимо от площадей, выделялась кладовая либо встраиваемый шкаф и шкаф-холодильник (углубление под кухонным подоконником).
Все квартиры хрущевских серий 1-2-3-4-х комнатные, площадь комнат может различаться очень значительно.
Так, гостиные занимают от 14 квадратных метров, спальни от 8 кв. м, детские комнаты от 6 кв. м. Больше всего «не повезло» кухням, их площадь начинается от 4.5 квадратов и даже в самых просторных вариантах составляет 6 или 7 квадратных метров. Трехкомнатная квартира может достигать 60 кв. м или даже чуть большей величины, но все равно в ней будут присутствовать смежные комнаты.
Четырехкомнатная «хрущевка» имеет размер от 62 до 72 кв. м, в этом варианте, наконец, появилась изоляция всех помещений друг от друга. Неудивительно, что дизайнеры и энтузиасты перепланировок высоко ценят это свойство. Почти всегда нет необходимости в радикальных изменениях внутреннего пространства, можно обойтись незначительными корректировками.
Гораздо чаще, впрочем, встречаются квартиры хрущевских серий площадью 30, 43 или 45 кв. м. Особенностью, характерной для жилья какой угодно площади, является выход окон всех квартир, за исключением угловых, в одну сторону. Именно так выглядят все дома серии 1-335, активно строившейся с 1963 по 1967 годы.
Важный момент: при перепланировке в идеале должны решаться не только эстетические проблемы, но и проблемы с использованной инфраструктурой. Независимо от серии, года постройки и нюансов распределения помещений, электропроводка и другие коммуникации морально устарели и не соответствуют требованиям нынешних потребителей.
Подключать энергоемкую бытовую технику становится очень опасно.
Согласование перепланировки
Пусть вы точно знаете, что какая-то стена или перегородка не нагружена, но все равно, ради общего спокойствия и уверенности, ради исключения конфликтов и претензий со стороны соседей, лучше составить и согласовать проект.
Ни одна несущая стена не может быть затронута при перепланировке даже в самой малой степени. Обнаружив ничтожное изменение ее, контролирующие органы с полным основанием наложат штраф или применят иные санкции. Важно учесть и иные тонкости, менее очевидные. Например:
- Запрещается действующими правилами расширять ванные, кухни и туалеты за счет жилых комнат (можно отнимать пространство только у технических помещений).
- Недопустимо расширение кухонь за счет санузлов.
- Если все-таки раньше кухню расширили, использовав жилую площадь, на ней не допускается установка сантехнических приспособлений и газовых плит.
- Кухни, оборудованные газовыми плитами, запрещено совмещать с жилыми комнатами (если нет промежуточных дверей).
Если вы хотите не снести несущую стену, а только лишь сделать в ней проем ограниченной величины, это допускается правилами.
Ни одна перепланировка, даже считающаяся безопасной и допустимой, не согласуется в домах, стоящих в очереди на снос. Объединять балконы с жилыми комнатами и кухнями можно лишь там, где проекты позволяют монтировать раздвигающиеся перегородки. Нельзя подсоединять теплый пол к общим трубам горячей воды и отопления, поскольку это создает не предусмотренную изначально нагрузку и может вовсе нарушить баланс этих важных систем. Под запрет попадает также перекрытие вентиляции или перенос ее траектории.В последнем случае речь идет и о вашей безопасности тоже: представьте себе, что будет, если замуруют «страшную и портящую вид» газовую трубу, а затем возникнет утечка и скопление газа в замкнутой полости. Или же вода начнет сочиться внутри, размывая понемногу материалы, пока не разрушит основательную часть стены.
Идеи для ремонта
Не стоит возмущаться по поводу ограничений, тем более что все они легко преодолимы обходными путями. Однокомнатную квартиру «хрущевского» формата можно преобразовать в студию, это отличный молодежный вариант. Суть – упразднение перегородок, которые мешают проходу напрямую из жилой комнаты в кухню и в коридор. Важно учесть, что санитарный узел не трогают, его перемещение возможно только на первом этаже.
Другой способ решить проблему недостатка места – это слияние кухонь с коридорами, при котором двери, ведущие в комнату, отодвигаются от входа в жилище. Второй вариант позволяет устанавливать в прихожих встроенные шкафы. Еще неплохо подумать об утеплении балкона или лоджии, о проведении туда отопления, но подобное решение должны воплощать квалифицированные профессионалы, не пытайтесь действовать самостоятельно!
Однокомнатные «хрущевки» в кирпичных домах с очень маленькими санитарными узлами и кухнями при стандартном расположении перегородок улучшаются путем отказа от ванн. Вместо них, устанавливают душевые кабины, что поможет оптимальнее использовать площадь санузла. Одна стена оказывается немного скошена, кухня чуть-чуть расширяется, а прихожая, напротив, сокращается.
Утепляя балкон, вы сможете переместить на него шкаф и рабочий стол, разместить там даже кабинет. Такой вид перепланировки уместен для семьи из троих детей и двоих взрослых. А вот квартиры формата «студия» не слишком нравятся большинству людей, при наличии детей от подобного решения лучше отказаться.
Еще один способ переоформления состоит в том, что переносятся перегородки. Когда боковина прихожей сдвинута в сторону комнаты, а лицевая стена ее придвинута почти к самой двери санузла, можно расширить коридор, поставить в нем встраиваемый шкаф или даже гардеробную. Дефицит площади в комнате возмещается изъятием части пространства кухни, но все же передвижение стены к двери в ванную позволяет поставить холодильник. Столовая доля кухонь сдвигается в комнату, а сделать территорию гармоничнее поможет установка раздвижных дверей либо входного блока вида «гармошка».
Однокомнатная «хрущевка» может быть преобразована в студию с обособленным спальным местом, где размещают кровать и небольшой шкаф.
Пусть мебели там немного, но одно из самых важных мест оказывается изолированным.
Привлекательно решение с созданием «квартиры-офиса», в котором крупная жилая комната сливается воедино с кухней и коридором. Все это пространство становится местом приема пищи и повседневного отдыха. Маленькая комната становится шире на 15 сантиметров, потому что передвинута перегородка, это помещение отводят под спальню и гардероб. Но обычным сдвигом перегородок не ограничиваются, формируют рабочий кабинет, между ним и гостиной встает прозрачная стена.
В зависимости от вашего усмотрения, раздвижные двери могут интегрировать кабинет визуально в общее пространство или же обособить его; ванну в санузле сменяет душевая и стиральная машина. Еще туда вводят удлиненную столешницу, дополненную ящиками.
Дизайн интерьера гостиной
Чтобы гости, которых вы впервые (да и потом) примете в перепланированной «хрущевке», сразу поняли суть дизайнерской идеи, нужно грамотно оформить гостиную. Оптимально, по мнению специалистов, подходят для интерьера этой комнаты светлые тона, они помогут справиться хотя бы визуально с недостатком пространства. А вот то, какой именно вид светлого материала на стены выбрать, решаете вы и только вы!
Широко распространено использование:
- обоев под покраску;
- обоев виниловых;
- шелкографии;
- стеклообоев;
- покрытых орнаментом блоков и конструкций.
Дополнительное поднятие потолка обеспечат источники света, смотрящие вверх.
Чтобы свет не показывал одно только однообразное пространство, имеет смысл использовать прямоугольные картины, оригинальные шторы и занавески. Высокие вазоны и металлические подставки для цветов добавят в интерьер изящества и элегантности, сделают комнату живее.
По мнению специалистов, гостиные в «хрущевках» следует оформлять в духе классики либо минимализма. Все прочие решения если и уместны, то только в отдельных случаях и в рамках авторского дизайна высокого класса. Самостоятельно спроектировать и реализовать хорошую обстановку очень тяжело. Минималистичный интерьер привлекателен тем, что используется только ограниченное количество мебели, по большей части модульного типа, отделка формируется из однородных материалов сдержанной окраски. Яркие аксессуары если и можно встретить, то только, как выразительный акцент, а не доминанту.
Классическая гостиная часто создается, когда с этим помещением объединяют кухню. Целесообразно проемы окон и дверей превратить в арочные или, по крайней мере, имитировать их. Классика отлично сочетается с зеркалами, репродукциями картин знаменитых художников, статуэтками. Допустимо использовать один или два предмета, украшенных ковкой, но основательно думайте, не будут ли они чрезмерно тяжеловесны в данном помещении.
Никогда не ставьте мебель по всему периметру, это визуально поглощает пространство и только снижает его выразительность. Неплохая идея – прованский потолок либо использование для него глянцевого материала. Как и в любой другой квартире, в «хрущевке» обстановка гостиной должна быть согласована с интерьером прочих комнат (или хотя бы отделяться от них переходной полосой, если разница слишком велика).
Стильные и практичные одновременно решения для пола – это паркетная доска, ламинат и линолеум, соответствующие цвету мебели, поэтому она уже должна быть либо не следует покупать напольное покрытие, не определившись с окраской предметов интерьера.
Нежелательны сочетания разноцветных покрытий или сочные, бросающиеся в глаза, узоры: они эмоционально отталкивают.
Обои, напротив, комбинировать можно – обычно внизу пускают относительно более светлые, а выше идет участок на один тон темнее. Используйте три, самое большее четыре декоративных элемента одновременно, иначе получится чрезмерно пестрый вид.
Соблюдая эти принципы, даже в квартире-студии получится создать уникальный и удобный для себя во всех отношениями интерьер.
О том, как перепланировать «хрущевку» по согласованию, смотрите в следующем видео.
типовые варианты проектов 1-2-4-комнатной квартиры, идеи ремонта
За вторую треть XX века десятки миллионов людей переехали из сельских изб и единичных комнат в общежитиях и коммунальных квартирах в отдельное жилье. Тогда это был грандиозный прорыв, но уровень требований за последние десятилетия резко возрос. И комфортная жизнь уже далеко не исчерпывается центральным отоплением, холодной и горячей водой, газоснабжением. Квартиры- «хрущевки», построенные в 1950-х-1960-х годах отличаются не слишком совершенной планировкой, по большей части, но исправить эту проблему при должном старании не составит труда.
Особенности зданий
Панельные пятиэтажки вовсе не были оригинальным изобретением, в них соединились тенденции, разработанные в Германии (компактные дома) и США (блочное домостроение).
Строительство домов первых серий вместе с отделочными работами занимало примерно 50 дней, максимальное удешевление и ускорение строительства достигалось за счет небольшой толщины несущих стен. В конструкциях не было предусмотрено использование лифтов, поскольку считалось, что здоровый человек способен подниматься на пятый этаж и спуститься с него самостоятельно. Из части проектов убирались балконы, на кухни отводилось от пяти до семи квадратных метров.
Газобетон, керамзитобетон, несмотря на свою неплохую прочность, не обеспечивают приличного уровня звукоизоляции и слабо держат тепло. Кирпичные пятиэтажные здания способны прослужить 90-100 лет, однако, это достижимо только при условии качественного, своевременного капитального ремонта и технического обслуживания.
Улучшенная планировка – это наличие балконов, и другие усовершенствования, введенные в проекты хрущевского периода начиная с середины 1960-х годов и позднее (до прекращения такого строительства совсем в 1985 году). В большинстве случаев проектировщики уже заботились и о раздельных санузлах. Потолки в высоту могли достигать трех метров, хотя типичны все же невысокие, до 250 см. Проходные комнаты все равно присутствуют обязательно, это «родовая черта» всего жилья описываемой категории.
Угловые комнаты с двумя окнами – наиболее холодное место во всем доме зимой. Зато неоспоримым преимуществом такой недвижимости является приличная освещенность помещения.
Целесообразно в подобных однокомнатных квартирах добиваться максимальной симметричности освещения. Установка мягкой мебели способна значительно повысить уровень повседневного комфорта.
Разделяющие смежные комнаты стены (перегородки) не отличаются особою прочностью. Потому использовать их для подвешивания тяжелых предметов и даже загруженных полок невозможно. Зато снос при выполнении перепланировки значительно упрощается и ускоряется.
Описание квартир
Двухкомнатная квартира в типовых проектах раннего периода встречается намного чаще, чем однокомнатная. Тем не менее круг проблем одинаков: площадь мала, комнаты расположены как попало, есть проходные помещения. Если в квартире предусмотрено две комнаты, ее площадь колеблется от 41 до 46 квадратных метров, а однокомнатные делались размером 30-31 м2. Независимо от площадей, выделялась кладовая либо встраиваемый шкаф и шкаф-холодильник (углубление под кухонным подоконником).
Все квартиры хрущевских серий 1-2-3-4-х комнатные, площадь комнат может различаться очень значительно. Так, гостиные занимают от 14 квадратных метров, спальни от 8 кв. м, детские комнаты от 6 кв. м. Больше всего «не повезло» кухням, их площадь начинается от 4.5 квадратов и даже в самых просторных вариантах составляет 6 или 7 квадратных метров. Трехкомнатная квартира может достигать 60 кв. м или даже чуть большей величины, но все равно в ней будут присутствовать смежные комнаты.
Четырехкомнатная «хрущевка» имеет размер от 62 до 72 кв.
м, в этом варианте, наконец, появилась изоляция всех помещений друг от друга. Неудивительно, что дизайнеры и энтузиасты перепланировок высоко ценят это свойство. Почти всегда нет необходимости в радикальных изменениях внутреннего пространства, можно обойтись незначительными корректировками.
Гораздо чаще, впрочем, встречаются квартиры хрущевских серий площадью 30, 43 или 45 кв. м. Особенностью, характерной для жилья какой угодно площади, является выход окон всех квартир, за исключением угловых, в одну сторону. Именно так выглядят все дома серии 1-335, активно строившейся с 1963 по 1967 годы.
Важный момент: при перепланировке в идеале должны решаться не только эстетические проблемы, но и проблемы с использованной инфраструктурой. Независимо от серии, года постройки и нюансов распределения помещений, электропроводка и другие коммуникации морально устарели и не соответствуют требованиям нынешних потребителей. Подключать энергоемкую бытовую технику становится очень опасно.
Согласование перепланировки
Следует заметить, что законодательство, регулирующее перепланировку жилья и иных помещений, было придумано не просто так. Малейшее изменение даже второстепенных стен, не говоря уже о несущих, способно привести к ужасным последствиям.
Пусть вы точно знаете, что какая-то стена или перегородка не нагружена, но все равно, ради общего спокойствия и уверенности, ради исключения конфликтов и претензий со стороны соседей, лучше составить и согласовать проект.
Ни одна несущая стена не может быть затронута при перепланировке даже в самой малой степени. Обнаружив ничтожное изменение ее, контролирующие органы с полным основанием наложат штраф или применят иные санкции. Важно учесть и иные тонкости, менее очевидные. Например:
- Запрещается действующими правилами расширять ванные, кухни и туалеты за счет жилых комнат (можно отнимать пространство только у технических помещений).
- Недопустимо расширение кухонь за счет санузлов.
- Если все-таки раньше кухню расширили, использовав жилую площадь, на ней не допускается установка сантехнических приспособлений и газовых плит.
- Кухни, оборудованные газовыми плитами, запрещено совмещать с жилыми комнатами (если нет промежуточных дверей).
Если вы хотите не снести несущую стену, а только лишь сделать в ней проем ограниченной величины, это допускается правилами. Но потребуется обосновать необходимость в таком решении, невозможность иного выхода из ситуации и безопасность планируемого отверстия. Обязательным условием разрешения на такую работу окажется инженерное обследование стены как в вашей квартире, так и на смежных этажах. Категорически запрещаются любые работы, которые усложнят доступ к общедомовым коммуникациям и устройствам, ими управляющим.
В последнем случае речь идет и о вашей безопасности тоже: представьте себе, что будет, если замуруют «страшную и портящую вид» газовую трубу, а затем возникнет утечка и скопление газа в замкнутой полости.
Или же вода начнет сочиться внутри, размывая понемногу материалы, пока не разрушит основательную часть стены.
Ни одна перепланировка, даже считающаяся безопасной и допустимой, не согласуется в домах, стоящих в очереди на снос. Объединять балконы с жилыми комнатами и кухнями можно лишь там, где проекты позволяют монтировать раздвигающиеся перегородки. Нельзя подсоединять теплый пол к общим трубам горячей воды и отопления, поскольку это создает не предусмотренную изначально нагрузку и может вовсе нарушить баланс этих важных систем. Под запрет попадает также перекрытие вентиляции или перенос ее траектории.
Идеи для ремонта
Не стоит возмущаться по поводу ограничений, тем более что все они легко преодолимы обходными путями. Однокомнатную квартиру «хрущевского» формата можно преобразовать в студию, это отличный молодежный вариант. Суть – упразднение перегородок, которые мешают проходу напрямую из жилой комнаты в кухню и в коридор. Важно учесть, что санитарный узел не трогают, его перемещение возможно только на первом этаже.
Другой способ решить проблему недостатка места – это слияние кухонь с коридорами, при котором двери, ведущие в комнату, отодвигаются от входа в жилище. Второй вариант позволяет устанавливать в прихожих встроенные шкафы. Еще неплохо подумать об утеплении балкона или лоджии, о проведении туда отопления, но подобное решение должны воплощать квалифицированные профессионалы, не пытайтесь действовать самостоятельно!
Однокомнатные «хрущевки» в кирпичных домах с очень маленькими санитарными узлами и кухнями при стандартном расположении перегородок улучшаются путем отказа от ванн.
Вместо них, устанавливают душевые кабины, что поможет оптимальнее использовать площадь санузла. Одна стена оказывается немного скошена, кухня чуть-чуть расширяется, а прихожая, напротив, сокращается.
Утепляя балкон, вы сможете переместить на него шкаф и рабочий стол, разместить там даже кабинет. Такой вид перепланировки уместен для семьи из троих детей и двоих взрослых. А вот квартиры формата «студия» не слишком нравятся большинству людей, при наличии детей от подобного решения лучше отказаться.
Еще один способ переоформления состоит в том, что переносятся перегородки. Когда боковина прихожей сдвинута в сторону комнаты, а лицевая стена ее придвинута почти к самой двери санузла, можно расширить коридор, поставить в нем встраиваемый шкаф или даже гардеробную. Дефицит площади в комнате возмещается изъятием части пространства кухни, но все же передвижение стены к двери в ванную позволяет поставить холодильник. Столовая доля кухонь сдвигается в комнату, а сделать территорию гармоничнее поможет установка раздвижных дверей либо входного блока вида «гармошка».
Однокомнатная «хрущевка» может быть преобразована в студию с обособленным спальным местом, где размещают кровать и небольшой шкаф. Пусть мебели там немного, но одно из самых важных мест оказывается изолированным.
Привлекательно решение с созданием «квартиры-офиса», в котором крупная жилая комната сливается воедино с кухней и коридором. Все это пространство становится местом приема пищи и повседневного отдыха. Маленькая комната становится шире на 15 сантиметров, потому что передвинута перегородка, это помещение отводят под спальню и гардероб.
Но обычным сдвигом перегородок не ограничиваются, формируют рабочий кабинет, между ним и гостиной встает прозрачная стена.
В зависимости от вашего усмотрения, раздвижные двери могут интегрировать кабинет визуально в общее пространство или же обособить его; ванну в санузле сменяет душевая и стиральная машина. Еще туда вводят удлиненную столешницу, дополненную ящиками.
Дизайн интерьера гостиной
Чтобы гости, которых вы впервые (да и потом) примете в перепланированной «хрущевке», сразу поняли суть дизайнерской идеи, нужно грамотно оформить гостиную. Оптимально, по мнению специалистов, подходят для интерьера этой комнаты светлые тона, они помогут справиться хотя бы визуально с недостатком пространства. А вот то, какой именно вид светлого материала на стены выбрать, решаете вы и только вы!
Широко распространено использование:
- обоев под покраску;
- обоев виниловых;
- шелкографии;
- стеклообоев;
- покрытых орнаментом блоков и конструкций.
Дополнительное поднятие потолка обеспечат источники света, смотрящие вверх. Чтобы свет не показывал одно только однообразное пространство, имеет смысл использовать прямоугольные картины, оригинальные шторы и занавески. Высокие вазоны и металлические подставки для цветов добавят в интерьер изящества и элегантности, сделают комнату живее.
По мнению специалистов, гостиные в «хрущевках» следует оформлять в духе классики либо минимализма.
Все прочие решения если и уместны, то только в отдельных случаях и в рамках авторского дизайна высокого класса. Самостоятельно спроектировать и реализовать хорошую обстановку очень тяжело. Минималистичный интерьер привлекателен тем, что используется только ограниченное количество мебели, по большей части модульного типа, отделка формируется из однородных материалов сдержанной окраски. Яркие аксессуары если и можно встретить, то только, как выразительный акцент, а не доминанту.
Классическая гостиная часто создается, когда с этим помещением объединяют кухню. Целесообразно проемы окон и дверей превратить в арочные или, по крайней мере, имитировать их. Классика отлично сочетается с зеркалами, репродукциями картин знаменитых художников, статуэтками. Допустимо использовать один или два предмета, украшенных ковкой, но основательно думайте, не будут ли они чрезмерно тяжеловесны в данном помещении.
Никогда не ставьте мебель по всему периметру, это визуально поглощает пространство и только снижает его выразительность. Неплохая идея – прованский потолок либо использование для него глянцевого материала. Как и в любой другой квартире, в «хрущевке» обстановка гостиной должна быть согласована с интерьером прочих комнат (или хотя бы отделяться от них переходной полосой, если разница слишком велика).
Стильные и практичные одновременно решения для пола – это паркетная доска, ламинат и линолеум, соответствующие цвету мебели, поэтому она уже должна быть либо не следует покупать напольное покрытие, не определившись с окраской предметов интерьера. Нежелательны сочетания разноцветных покрытий или сочные, бросающиеся в глаза, узоры: они эмоционально отталкивают.
Обои, напротив, комбинировать можно – обычно внизу пускают относительно более светлые, а выше идет участок на один тон темнее.
Используйте три, самое большее четыре декоративных элемента одновременно, иначе получится чрезмерно пестрый вид.
Соблюдая эти принципы, даже в квартире-студии получится создать уникальный и удобный для себя во всех отношениями интерьер.
О том, как перепланировать «хрущевку» по согласованию, смотрите в следующем видео.
типовые варианты проектов 1-2-4-комнатной квартиры, идеи ремонта
За вторую треть XX века десятки миллионов людей переехали из сельских изб и единичных комнат в общежитиях и коммунальных квартирах в отдельное жилье. Тогда это был грандиозный прорыв, но уровень требований за последние десятилетия резко возрос. И комфортная жизнь уже далеко не исчерпывается центральным отоплением, холодной и горячей водой, газоснабжением. Квартиры- «хрущевки», построенные в 1950-х-1960-х годах отличаются не слишком совершенной планировкой, по большей части, но исправить эту проблему при должном старании не составит труда.
Особенности зданий
Панельные пятиэтажки вовсе не были оригинальным изобретением, в них соединились тенденции, разработанные в Германии (компактные дома) и США (блочное домостроение). Строительство домов первых серий вместе с отделочными работами занимало примерно 50 дней, максимальное удешевление и ускорение строительства достигалось за счет небольшой толщины несущих стен.
В конструкциях не было предусмотрено использование лифтов, поскольку считалось, что здоровый человек способен подниматься на пятый этаж и спуститься с него самостоятельно. Из части проектов убирались балконы, на кухни отводилось от пяти до семи квадратных метров.
Газобетон, керамзитобетон, несмотря на свою неплохую прочность, не обеспечивают приличного уровня звукоизоляции и слабо держат тепло. Кирпичные пятиэтажные здания способны прослужить 90-100 лет, однако, это достижимо только при условии качественного, своевременного капитального ремонта и технического обслуживания.
Улучшенная планировка – это наличие балконов, и другие усовершенствования, введенные в проекты хрущевского периода начиная с середины 1960-х годов и позднее (до прекращения такого строительства совсем в 1985 году). В большинстве случаев проектировщики уже заботились и о раздельных санузлах. Потолки в высоту могли достигать трех метров, хотя типичны все же невысокие, до 250 см. Проходные комнаты все равно присутствуют обязательно, это «родовая черта» всего жилья описываемой категории.
Угловые комнаты с двумя окнами – наиболее холодное место во всем доме зимой. Зато неоспоримым преимуществом такой недвижимости является приличная освещенность помещения.
Целесообразно в подобных однокомнатных квартирах добиваться максимальной симметричности освещения.
Установка мягкой мебели способна значительно повысить уровень повседневного комфорта.
Разделяющие смежные комнаты стены (перегородки) не отличаются особою прочностью. Потому использовать их для подвешивания тяжелых предметов и даже загруженных полок невозможно. Зато снос при выполнении перепланировки значительно упрощается и ускоряется.
Описание квартир
Двухкомнатная квартира в типовых проектах раннего периода встречается намного чаще, чем однокомнатная. Тем не менее круг проблем одинаков: площадь мала, комнаты расположены как попало, есть проходные помещения. Если в квартире предусмотрено две комнаты, ее площадь колеблется от 41 до 46 квадратных метров, а однокомнатные делались размером 30-31 м2. Независимо от площадей, выделялась кладовая либо встраиваемый шкаф и шкаф-холодильник (углубление под кухонным подоконником).
Все квартиры хрущевских серий 1-2-3-4-х комнатные, площадь комнат может различаться очень значительно. Так, гостиные занимают от 14 квадратных метров, спальни от 8 кв. м, детские комнаты от 6 кв. м. Больше всего «не повезло» кухням, их площадь начинается от 4.5 квадратов и даже в самых просторных вариантах составляет 6 или 7 квадратных метров. Трехкомнатная квартира может достигать 60 кв. м или даже чуть большей величины, но все равно в ней будут присутствовать смежные комнаты.
Четырехкомнатная «хрущевка» имеет размер от 62 до 72 кв.
м, в этом варианте, наконец, появилась изоляция всех помещений друг от друга. Неудивительно, что дизайнеры и энтузиасты перепланировок высоко ценят это свойство. Почти всегда нет необходимости в радикальных изменениях внутреннего пространства, можно обойтись незначительными корректировками.
Гораздо чаще, впрочем, встречаются квартиры хрущевских серий площадью 30, 43 или 45 кв. м. Особенностью, характерной для жилья какой угодно площади, является выход окон всех квартир, за исключением угловых, в одну сторону. Именно так выглядят все дома серии 1-335, активно строившейся с 1963 по 1967 годы.
Важный момент: при перепланировке в идеале должны решаться не только эстетические проблемы, но и проблемы с использованной инфраструктурой. Независимо от серии, года постройки и нюансов распределения помещений, электропроводка и другие коммуникации морально устарели и не соответствуют требованиям нынешних потребителей. Подключать энергоемкую бытовую технику становится очень опасно.
Согласование перепланировки
Следует заметить, что законодательство, регулирующее перепланировку жилья и иных помещений, было придумано не просто так. Малейшее изменение даже второстепенных стен, не говоря уже о несущих, способно привести к ужасным последствиям.
Пусть вы точно знаете, что какая-то стена или перегородка не нагружена, но все равно, ради общего спокойствия и уверенности, ради исключения конфликтов и претензий со стороны соседей, лучше составить и согласовать проект.
Ни одна несущая стена не может быть затронута при перепланировке даже в самой малой степени. Обнаружив ничтожное изменение ее, контролирующие органы с полным основанием наложат штраф или применят иные санкции. Важно учесть и иные тонкости, менее очевидные. Например:
- Запрещается действующими правилами расширять ванные, кухни и туалеты за счет жилых комнат (можно отнимать пространство только у технических помещений).
- Недопустимо расширение кухонь за счет санузлов.
- Если все-таки раньше кухню расширили, использовав жилую площадь, на ней не допускается установка сантехнических приспособлений и газовых плит.
- Кухни, оборудованные газовыми плитами, запрещено совмещать с жилыми комнатами (если нет промежуточных дверей).
Если вы хотите не снести несущую стену, а только лишь сделать в ней проем ограниченной величины, это допускается правилами. Но потребуется обосновать необходимость в таком решении, невозможность иного выхода из ситуации и безопасность планируемого отверстия. Обязательным условием разрешения на такую работу окажется инженерное обследование стены как в вашей квартире, так и на смежных этажах. Категорически запрещаются любые работы, которые усложнят доступ к общедомовым коммуникациям и устройствам, ими управляющим.
В последнем случае речь идет и о вашей безопасности тоже: представьте себе, что будет, если замуруют «страшную и портящую вид» газовую трубу, а затем возникнет утечка и скопление газа в замкнутой полости.
Или же вода начнет сочиться внутри, размывая понемногу материалы, пока не разрушит основательную часть стены.
Ни одна перепланировка, даже считающаяся безопасной и допустимой, не согласуется в домах, стоящих в очереди на снос. Объединять балконы с жилыми комнатами и кухнями можно лишь там, где проекты позволяют монтировать раздвигающиеся перегородки. Нельзя подсоединять теплый пол к общим трубам горячей воды и отопления, поскольку это создает не предусмотренную изначально нагрузку и может вовсе нарушить баланс этих важных систем. Под запрет попадает также перекрытие вентиляции или перенос ее траектории.
Идеи для ремонта
Не стоит возмущаться по поводу ограничений, тем более что все они легко преодолимы обходными путями. Однокомнатную квартиру «хрущевского» формата можно преобразовать в студию, это отличный молодежный вариант. Суть – упразднение перегородок, которые мешают проходу напрямую из жилой комнаты в кухню и в коридор. Важно учесть, что санитарный узел не трогают, его перемещение возможно только на первом этаже.
Другой способ решить проблему недостатка места – это слияние кухонь с коридорами, при котором двери, ведущие в комнату, отодвигаются от входа в жилище. Второй вариант позволяет устанавливать в прихожих встроенные шкафы. Еще неплохо подумать об утеплении балкона или лоджии, о проведении туда отопления, но подобное решение должны воплощать квалифицированные профессионалы, не пытайтесь действовать самостоятельно!
Однокомнатные «хрущевки» в кирпичных домах с очень маленькими санитарными узлами и кухнями при стандартном расположении перегородок улучшаются путем отказа от ванн.
Вместо них, устанавливают душевые кабины, что поможет оптимальнее использовать площадь санузла. Одна стена оказывается немного скошена, кухня чуть-чуть расширяется, а прихожая, напротив, сокращается.
Утепляя балкон, вы сможете переместить на него шкаф и рабочий стол, разместить там даже кабинет. Такой вид перепланировки уместен для семьи из троих детей и двоих взрослых. А вот квартиры формата «студия» не слишком нравятся большинству людей, при наличии детей от подобного решения лучше отказаться.
Еще один способ переоформления состоит в том, что переносятся перегородки. Когда боковина прихожей сдвинута в сторону комнаты, а лицевая стена ее придвинута почти к самой двери санузла, можно расширить коридор, поставить в нем встраиваемый шкаф или даже гардеробную. Дефицит площади в комнате возмещается изъятием части пространства кухни, но все же передвижение стены к двери в ванную позволяет поставить холодильник. Столовая доля кухонь сдвигается в комнату, а сделать территорию гармоничнее поможет установка раздвижных дверей либо входного блока вида «гармошка».
Однокомнатная «хрущевка» может быть преобразована в студию с обособленным спальным местом, где размещают кровать и небольшой шкаф. Пусть мебели там немного, но одно из самых важных мест оказывается изолированным.
Привлекательно решение с созданием «квартиры-офиса», в котором крупная жилая комната сливается воедино с кухней и коридором. Все это пространство становится местом приема пищи и повседневного отдыха. Маленькая комната становится шире на 15 сантиметров, потому что передвинута перегородка, это помещение отводят под спальню и гардероб.
Но обычным сдвигом перегородок не ограничиваются, формируют рабочий кабинет, между ним и гостиной встает прозрачная стена.
В зависимости от вашего усмотрения, раздвижные двери могут интегрировать кабинет визуально в общее пространство или же обособить его; ванну в санузле сменяет душевая и стиральная машина. Еще туда вводят удлиненную столешницу, дополненную ящиками.
Дизайн интерьера гостиной
Чтобы гости, которых вы впервые (да и потом) примете в перепланированной «хрущевке», сразу поняли суть дизайнерской идеи, нужно грамотно оформить гостиную. Оптимально, по мнению специалистов, подходят для интерьера этой комнаты светлые тона, они помогут справиться хотя бы визуально с недостатком пространства. А вот то, какой именно вид светлого материала на стены выбрать, решаете вы и только вы!
Широко распространено использование:
- обоев под покраску;
- обоев виниловых;
- шелкографии;
- стеклообоев;
- покрытых орнаментом блоков и конструкций.
Дополнительное поднятие потолка обеспечат источники света, смотрящие вверх. Чтобы свет не показывал одно только однообразное пространство, имеет смысл использовать прямоугольные картины, оригинальные шторы и занавески. Высокие вазоны и металлические подставки для цветов добавят в интерьер изящества и элегантности, сделают комнату живее.
По мнению специалистов, гостиные в «хрущевках» следует оформлять в духе классики либо минимализма.
Все прочие решения если и уместны, то только в отдельных случаях и в рамках авторского дизайна высокого класса. Самостоятельно спроектировать и реализовать хорошую обстановку очень тяжело. Минималистичный интерьер привлекателен тем, что используется только ограниченное количество мебели, по большей части модульного типа, отделка формируется из однородных материалов сдержанной окраски. Яркие аксессуары если и можно встретить, то только, как выразительный акцент, а не доминанту.
Классическая гостиная часто создается, когда с этим помещением объединяют кухню. Целесообразно проемы окон и дверей превратить в арочные или, по крайней мере, имитировать их. Классика отлично сочетается с зеркалами, репродукциями картин знаменитых художников, статуэтками. Допустимо использовать один или два предмета, украшенных ковкой, но основательно думайте, не будут ли они чрезмерно тяжеловесны в данном помещении.
Никогда не ставьте мебель по всему периметру, это визуально поглощает пространство и только снижает его выразительность. Неплохая идея – прованский потолок либо использование для него глянцевого материала. Как и в любой другой квартире, в «хрущевке» обстановка гостиной должна быть согласована с интерьером прочих комнат (или хотя бы отделяться от них переходной полосой, если разница слишком велика).
Стильные и практичные одновременно решения для пола – это паркетная доска, ламинат и линолеум, соответствующие цвету мебели, поэтому она уже должна быть либо не следует покупать напольное покрытие, не определившись с окраской предметов интерьера. Нежелательны сочетания разноцветных покрытий или сочные, бросающиеся в глаза, узоры: они эмоционально отталкивают.
Обои, напротив, комбинировать можно – обычно внизу пускают относительно более светлые, а выше идет участок на один тон темнее.
Используйте три, самое большее четыре декоративных элемента одновременно, иначе получится чрезмерно пестрый вид.
Соблюдая эти принципы, даже в квартире-студии получится создать уникальный и удобный для себя во всех отношениями интерьер.
О том, как перепланировать «хрущевку» по согласованию, смотрите в следующем видео.
Хрущевка 4 комнаты дизайн фото возможных примеров обустройства
Квартиры в хрущевских домах обладают весьма небольшой площадью, будь то помещения с тремя или четырьмя комнатами, все равно размер помещения оставляет желать лучшего. На ограниченном пространстве достаточно тяжело установить необычные элементы мебели или же применять новейшие тенденции в области отделочных работ. Важно, чтобы в итоге хрущевка 4 комнаты дизайн фото которых представлены в статье получился стильным и в то же время удобным для выполнения всех необходимых функций. Так как же это сделать самостоятельно? Для этого необходимо изучить все нюансы оформления и ремонта в хрущевках.
Особенности оформления
Четырех комнатные хрущевки – это редкость, но все же квартиры этого типа иногда встречаются и ремонт такой квартиры нередко вызывает затруднения. Площадь данного помещения составляет в среднем 60-70 квадратных метров, этот размер вполне равноценен обычному трехкомнатному квартирному помещению. Поэтому планировка на этой площади будет весьма несложной.
В четырёхкомнатном помещении малогабаритного типа имеются 3 спальных, гостиная, кухонная комната и санузел. Для того чтобы помещения были не загроможденными и функциональным, важно при обустройстве и ремонте все делать правильно.
В этом деле поможет знание определенных особенностей оформления:
- в первую очередь следует выбрать дизайн помещения, а именно его стиль. Он должен не только создавать красивый, полноценный, гармоничный внешний вид, но и расширять каждую комнату. Поэтому наибольший акцент нужно делать на светлые элементы, многофункциональные предметы мебели и светлое освещение всего пространства;
- если вдруг нужно увеличить одну из комнат, то для начала стоит выяснить, какие комнаты используются по назначению, а именно если семья состоит из трех человек – папа, мама и ребенок, то потребуется 3 отдельных помещения. Значит, четвертую комнату можно расширить. Если она располагается рядом с кухней, то можно убрать стенку и сделать помещение еще больше. В результате можно получить большую кухню, в которой можно с легкостью готовить еду, принимать гостей и проводить различные праздничные мероприятия;
- оформление стен — стены лучше всего оформлять в светлых тонах без мелких и контрастных рисунков. Применение обоев с этим типом фона может привести к ограничению пространства и нарушению стиля дизайна комнат. Желательно посмотреть фото с вариантами оформления стен квартир с 4 комнатами;
- выбор материала для пола — для пола выбрать можно практический любой вид материала, главное, чтобы он был не сильно ярким и совпадал с общим видом дизайна помещения;
- оформление потолка — потолок можно побелить, отштукатурить, установить натяжной потолок, выполнить облицовку из зеркального или глянцевого материала. Главное, не стоит устанавливать многоуровневые конструкции, они уменьшат высоту комнат;
- выбор мебели — как выбрать мебель для каждой комнаты? Это достаточно сложная задача, ведь нужно это сделать так, что выбранные предметы не уменьшали пространство, а, наоборот, дополняли дизайн комнат. Хорошо будут смотреться модульные конструкции небольшого размера. Также можно посмотреть фото с вариантами размещения мебели в малогабаритных квартирах;
- правильная расстановка освещения — осветительные приборы лучше применять точечного типа.
Световые приборы следует расставлять по всему периметру каждой комнаты. Также для гостиной важно осветить центр помещения, для спальни рекомендуется применять более светлое и в то же время расслабляющее освещение, для кухни нужно делать упор на освещение обеденной зоны и зоны для приготовления пищи; - гармония цвета — все предметы в комнатах должны сочетаться со стилем интерьера. Не стоит применять контрастные, яркие предметы, которые в итоге нарушат общий дизайн. Можно использовать контрастные цвета, которые будут дополнять друг друга. Лучше делать помещение более светлым, белые и светлые цвета делают комнаты просторнее и шире.
Конечно, это еще не все. Лучше ознакомиться с особенностями оформления, ремонта 4 комнатной квартиры малогабаритного типа более подробно. Также можно просмотреть различные фото с вариантами оформления.
Варианты планировки
Многим хочется, чтобы площадь малогабаритного помещения была больше и в то же время выполняла все свои функции. Если во время ремонта и планировки однокомнатного помещения возникают трудности, то с 4 комнатами этой проблемы возникнуть не должно. Во время планировки следует воспользоваться важными рекомендациями:
- планировка может быть выполнена при помощи зонирования. Гостиную можно разделить на зоны при помощи мебели, например, отделить уголок для приема гостей или для чтения и отдыха, также выделить место для детей;
- планировка кладового помещения. Если в квартире имеется кладовое помещение, то его можно обустроить под детскую комнату. Главное, все оформить правильно и красиво;
- планировка с расширением площади за счет балкона. Если в гостиной или спальной комнате имеется балкон, то можно во время планировки убрать стену или же оборудовать его как дополнительную комнату для отдыха. Его нужно утеплить, обшить стены гипсокартоном и украсить их стильными обоями или покрасить. Затем там можно установить небольшой диван и столик;
- планировка и ремонт при помощи сноса стен.
Если гостиная расположена около кухни, то можно убрать стенку между этими комнатами. В результате получится просторное помещение для приготовления еды, для приема гостей и проведения различных праздников.
Оформление стен
Безусловно, как будет оформлен дизайн, зависит и от того, как будут выглядеть сами стены, вернее, какой материал для их оформления будет использован. Чтобы стеновая поверхность гармонировала с внешним видом, стилем и интерьером комнат, нужно запомнить несколько правил по их оформлению:
- для зала желательно применять однотонные обои. Также идеально будут вписываться в дизайн текстильные обои с диагональными или параллельными линиями. Этот рисунок поможет визуально увеличить размер помещения;
- помимо обоев для гостиной можно применять краску, лепнину, кирпичную кладку. Желательно кладкой и лепниной выделять определенные зоны;
- использование контраста двух цветов, а именно снизу можно приклеить бежевые, желтые или розоватые обои и сверху покрасить или также приклеить обои более светлых расцветок;
- в кухонном помещении особое внимание нужно уделить рабочей зоне. В этом месте делается облицовка фартука. Для него рекомендуется использовать качественную плитку с неброским рисунком. По цвету она должна быть бежевой, белой, кремовой, желтой, светло-коричневой, светло-зеленой, персиковой. Материал нужно использовать прочный, износостойкий;
- общие стены помещения кухни можно обклеить текстильными обоями светлых расцветок с неброским рисунком;
- в спальной упор нужно делать на отдыхе. По этой причине стены должны быть белыми, голубоватыми или светло розовыми;
- в прихожей можно стены обклеить обоями текстильного типа боле строгого вида. Но, главное, нужно оформить дизайн так, чтобы он не нарушал интерьер. Не стоит применять покрытие стен с большими яркими рисунками. Лучше использовать однотонные обои с линиями, небольшими рисунками из фигур, узоров.
Также можно стены покрасить или отштукатурить.
Пол
Для пола можно применять любой материал – линолеум, паркет, ламинат, ковролин. Обязательное условие вид и расцветка покрытия. Важно чтобы оно сочеталось с цветом мебели и дизайном. Будет некрасиво выглядеть, когда общий вид интерьера светлый, а напольное покрытие темное или яркое. Для спальни можно использовать ковролин, который придаст этой комнате уют и тепло.
При выборе напольного покрытия важно учитывать комнату, для которой оно предназначается. К примеру, для ванной комнаты стоит выбирать плитку или наливной пол, для кухни плитку или ламинат, а для гостиной можно рассмотреть любой из вариантов.
Потолок
Оформление потолка для всех комнат общее:
- не следует устанавливать многоуровневые конструкции, они уменьшат размер и высоту помещений;
- потолок можно отштукатурить белой побелкой;
- красиво будут выглядеть натяжные потолки с глянцевой или зеркальной поверхностью;
- облицовка потолка зеркальным покрытием;
- покраска потолка светлой водоэмульсионной краской.
Главное, чтобы потолок не сливался с тоном стен, в противном случае это нарушит весь дизайн. Также не забудьте взглянуть на фото с внешним видом потолка, это поможет во время ремонта сделать все правильно.
Мебель
Вид и расстановка мебели зависит от стиля помещения. Но перед тем как выбрать стиль интерьера необходимо запомнить несколько правил использования мебели:
- предпочтение стоит отдать многофункциональным элементам, но не слишком большого размера;
- если используется шкаф в спальне для вещей, то в нем должны присутствовать выдвижные шкафчики, полки с большой вместимостью;
- кровать для спальни лучше применять с внутренним пространством, чтобы туда также можно было убрать белье и вещи;
- в зале можно установить средний диван светлого цвета, который будет служить разделением помещения на зоны;
- если в комнатах устанавливаются пуфики, то стоит приобретать изделия с наличием внутреннего места для складывания вещей;
- в кухне можно установить небольшие шкафчики с дверцами наверху, а снизу лучше отдать предпочтение шкафам с полками, в которых можно будет хранить тяжелую посуду;
- не забывайте, что применение модульных разборных конструкций поможет намного сэкономить место комнат.

Стили
Четырех комнатную квартиру в хрущевке можно оформить в разных стилях. Часто применяют следующие виды:
- минимализм;
- хай-тек;
- в японском стиле;
- авангард.
Минимализм
Главная особенность этого стиля состоит в применении геометрических форм и фигур. Все фасадные элементы должны иметь гладкую и простую поверхность. Кроме этого, в этом стиле полностью отсутствуют элементы декорирования. В качестве украшения будет служить общая отделка и мебель.
Все крупные элементы нужно расставить так, чтобы они были легкодоступными, но в то же время не ограничивали пространство квартиры.
Для данного стиля характерны следующие виды материалов мебели:
- мебель из мягкой основы;
- кожа;
- ткани из грубой натуральной структуры;
- брезент;
- гладкое дерево без выраженной структуры;
- МДФ;
- алюминий;
- пластиковый материал.
Японский
Для этого стиля характерно небольшое количество мебели, полное отсутствие элементов декора и загромождения. Применение приземистых предметов, позволит визуально увеличить пространство и высоту комнат. Кроме этого, применение перегородок, позволит во время ремонта разделить комнаты на зоны. Можно посмотреть различные фото в интернете, на которых имеется вид хрущевки, дизайн которой оформлен в японском стиле.
Хай-тек
Этот вариант идеально подходит для хрущевки. Это объясняется уникальными особенностями этого дизайна:
- глянцевые, зеркальные поверхности элементов интерьера позволят расширить и увеличить помещения;
- использование мебели с прямыми линиями позволяет подчеркнуть общий стиль комнат;
- светлые тона расширяют площадь во много раз;
- встроенные и многофункциональные предметы мебели делают комнаты практичными и многофункциональными.

Также вы можете посмотреть многочисленные фото квартир в хрущевке с оформлением комнат в этом стиле.
Авангард
Авангард — это сочетание несочетаемого. Во время оформления в этом стиле не стоит использовать типовые предметы. Главная особенность этого дизайна состоит в смешивании цветов, мебели. Кроме этого, для мебели характерно наличие острых углов, необычных форм и контрастное оформление. Посмотрите различные фото с оформлением в этом стиле, на них вы сможете увидеть все элементы, которые характерны для этого вида оформления.
Цвет
Прежде чем приступить к оформлению хрущевки запомните несколько важных нюансов применения цветовой гаммы для всех комнат во время ремонта:
- для зала характерно использование светлых тонов – бежевого, белого, светло-коричневого, светло зеленого, желтого, кремового. Эти цвета позволят расширить помещение;
- обязательно рядом с окнами повесьте шторы светлого тона. Для спальни следует использовать легкую белую тюль, а для зала легкие шелковые шторы под цвет к стенам;
- спальню следует оформить в голубом, розовом или бежевом тоне. Светлые холодные оттенки настраивают организм на отдых. Также на потолке следует установить подсветку белого или голубоватого цвета;
- для кухни характерны также светлые цвета – белый, светло зеленый, бежевый, белый. Цвет освещения должен быть интенсивный и яркий;
- в зал следует установить освещение желтого, белого или красноватого оттенка. Главное, чтобы освещение сочеталось с дизайном;
- также в гостиной можно применить контраст цветов – темный низ, светлый верх. Это придаст оригинальность и неповторимый стиль;
- мебель можно использовать светло-коричневого, белого цвета. Главное, не устанавливать слишком темные мебельные элементы. Они будут выглядеть громоздкими на фоне общего интерьера. В подтверждение взгляните на различные фото в интернете.

Оформление дизайна 4 комнатной хрущевки – это достаточно сложный процесс, который требует особого подхода. Конечно, для облегчения этой задачи можно посмотреть на различные фото в интернете, на которых изображена полная расстановка всех предметов и варианты отделки стен, пола, потолка. Главное, во время ремонта нужно делать упор на расширение пространство. Поэтому применяйте многофункциональные мебельные элементы, для облицовки следует использовать светлые тона. Кроме этого, планировка должна быть правильной, поэтому не забудьте воспользоваться главными рекомендациями по ее обустройству.
Перепланировка 4-х комнатной квартиры в хрущевке
Эпоха начала индустриального домостроения, прочно ассоциируется с понятием хрущевка. Самыми распространёнными зданиями стали панельные пятиэтажки, но и на долю кирпичных домов без лифта приходится значительный объем возведенного в те годы жилья. Если панельные дома сразу же проектировались как временное решение, то в кирпичные пятиэтажки закладывался значительный ресурс и этим зданиям стоять еще долго.
Данная перепланировка 4-х комнатной квартиры в хрущевке, находящейся в кирпичном доме, построенном по индивидуальному проекту, была вызвана желанием владельца приблизить его квартиру к современным стандартам комфортного жилья. Многие кирпичные дома, построенные в этот перерод, считаются выполненными по индивидуальным проектам, хотя, по сути, не сильно отличатся от типовых.
Именно поэтому рассматриваемый проект перепланировки 4-х комнатной квартиры в хрущевке актуален для значительного количества сходных домов.
Перепланировка 4-х комнатной квартиры в хрущевке не затрагивала несущих конструкций дома и, что немаловажно, дом имеет межэтажные перекрытия, выполнение из железобетонных плит. Эти обстоятельства позволили сам проект перепланировки 4 комнатной хрущевки и техническое заключение о ее возможности выполнить силами специалистов организации, имеющей нужные допуски СРО.
После предварительной консультации собственник квартиры принял решение доверить подготовку документации для согласования перепланировки 4-х комнатной квартиры в хрущевке нашей организации.
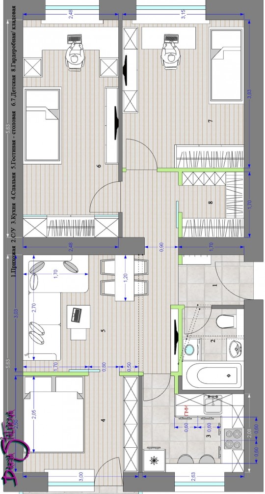
Перепланировка 4-х комнатной квартиры в хрущевке: начальная планировка квартиры по БТИПри проведении работ по перепланировке 4-х комнатной квартиры в хрущевке на площади комнаты (1) при помощи строительства перегородок выделили помещение гардеробной (1б) со входом из этой комнаты. Планировка комнат (2 и 3) при проведении ремонта не изменялась.
В коридоре (6) демонтировали оба встроенных шкафа (6а и 6б), и перегородки, отделяющие комнату (4) от коридора.Новую перегородку в зоне прихожей возвели с учетом устройства на площади комнаты (4) глубокой ниши для монтажа встроенного шкафа (6а).
Перегородку с широким проемом для доступа в комнату продолжили и выполнили на площади коридора еще один большой встроенный шкаф (4б) с доступом из комнаты.
Также прект перепланировки 4-х комнатной квартиры в хрущевке предусматривал снос внутренней перегородки, разделявшей помещения санузла. Существующий вход на кухню и окно между кухней (5) и санузлом заложили.
Перепланировка 4-х комнатной квартиры в хрущевке: обследование конструкции, план строительных работИспользуя имеющееся пространство ванной и уборной и добавив к нему часть площади коридора возвели новые перегородки с таким расчетом, чтобы получить два полноценных совмещенных санузла.
Первый санузел (7) сделали небольшим и для его устройства хватило части площади ванной. В помещении установили унитаз, компактную раковину и сохранили на своем месте ванну.
Второй, более просторный, санузел (8) выполнили на площадях, ранее принадлежащих частям ванной и коридора, а также всей площади уборной. В этом помещении установили унитаз и большую раковину, а также большой дизайнерский душевой поддон.
Кроме этого, около душа построили простенок и установили в получившейся нише несколько полок.
В увеличившейся по площади так называемой мокрой зоне провели работы по гидроизоляции и звукоизоляции, что потребовало оформления актов на проведение скрытых работ.
Перепланировка 4-х комнатной квартиры в хрущевке: план после перепланировки и экспликацияДля доступа в помещение кухни (5) в перегородке, отделяющей ее от комнаты (4) выполнили широкий проем.
Так как на кухне установлена газовая плита, между помещениями установили раздвижную дверь, обеспечивающую плотный притвор, как того требуют нормативы.
При проведении работ перепланировке 4-х комнатной квартиры в хрущевке кухонную мойку перенесли к окну. Для запланированного переноса на новое место газовой плиты потребовалось прибегнуть к услугам специалистов АО «Мосгаз» и оформить эти работы надлежащим образом.
Для того, чтобы посмотреть различные варианты перепланировок, документацию для которых подготовили наши специалисты, можно перейти по этой ссылке.
Мы будем рады ответить Вам на вопросы, если вы свяжетесь с нашими консультантами по телефону, отправите вопрос электронной почтой или зададите его на сайте. Также мы будем рады личной встрече с вами в нашем офисе.
Перепланировка четырехкомнатной квартиры в хрущевке — фото, варианты и советы профессиональных дизайнеров
Стандартная 4х комнатная хрущевка имеет площадь 60 кв. м. Это размер современной «двушки», а значит, комнаты очень маленькие. Среди доступных вариантов, как сделать перепланировку 4х комнатной хрущевки, самой популярной идеей является снос нескольких стен. Рассмотрим несколько готовых решений, по которым можно изменить четырехкомнатный план.
Перепланировка 4 х комнатной хрущевки фото
Советская квартира с четырьмя комнатами имеет маленькую кухню, санузел, проходную гостиную и три жилых помещения.
Каждая отдельная комната подходит на роль спальни, детской, кабинета. Но когда нет необходимости в большом количестве помещений, можно объединять их между собой в разных вариантах. Главное, не убирать несущие капитальные стены, выполняя четырехкомнатный ремонт.
Вариант №1 – Большая зала
Четырехкомнатная хрущевка имеет большую гостиную, откуда можно попасть почти во все остальные помещения. Но если какая-то комната не нужна хозяевам, ее можно присоединить к площади залы. Перепланировка способна сделать гостиную больше и светлее.
Фотография большой главной залы после перепланировки на первом изображении. Отдельными зонами должны оставаться спальные и детские помещения. Меняя 4х комнатный проект, можно присоединить к главной зале:
- Рабочий кабинет.
- Столовую зону.
- Творческую мастерскую.
- Зону для занятий спортом.
Выполняя четырехкомнатный ремонт, в зале следует выделить четкие границы между зонами. Эта задача решается разными способами: расстановкой мебели, наличием интерьерных перегородок, отделкой разных цветов.
Вариант №2 – Создание студии
Самый популярный вариант для перепланировки – снос комнатной перегородки между кухней и соседним помещением. Даже четырехкомнатная хрущевка имеет очень маленькую кухню. Там неудобно готовить, и нет места для обеденного стола. Перепланировка по типу студии делает квартиру просторной и современной.
На фото показан интерьер четырехкомнатной студии после ремонта:
Отделка на фотографии выглядит дорого и стильно.
Дизайнер использовал нестандартные для хрущевки темные тона. Обычно для маленьких квартир советуют выбирать светлую гамму. Но четырехкомнатная перепланировка делает пространство больше. И даже оформленная в темных цветах хрущевка уже не кажется маленькой и тесной.
Вариант № 3 – Пятая комната
Четырехкомнатный проект имеет большую проходную гостиную. Если владельцам хрущевки требуется пятое помещение, возможно отделить часть залы. Эту задачу по перепланировке решит сплошная стена из гипсокартона или невысокая перегородка. Квартира получит дополнительную функциональную зону.
На фотографии показана спальня, сделанная из части гостиной:
Здесь перегородки выполняют также роль книжного шкафа и стенки для хранения семейного гардероба. Спальная отделена от гостиной с помощью удобной ширмы. Четырехкомнатный проект этого типа можно использовать для создания новой детской комнаты, когда в семье планируется пополнение.
Совмещенный санузел: плюсы и минусы
Квартира хрущевка может иметь совместный или раздельный санузел. В четырехкомнатном проекте его размер составляет не более 4 кв. м., максимум 5 кв. м. Объединение туалета и ванной увеличит полезную площадь санузла.
После перепланировки освободится место, куда можно установить стиральную машинку и шкаф для хранения бытовых мелочей. Четырехкомнатный ремонт станет немного дешевле за счет убранной стены, для которой не потребуется отделка.
На фото: перепланировка санузла после капитального ремонта:Но если в четырехкомнатной квартире живет большая семья, от объединения ванной и туалета лучше отказаться.
Это доставит неудобства живущим в доме, так как утром и вечером будут возникать очереди в санузел. Не всем членам одной семьи комфортно использовать ванную и туалет одновременно.
Другие изменения в интерьере
Четырехкомнатную хрущевку можно сделать уютнее и без глобальных изменений в интерьере. Конструкция советских домов содержит архитектурные элементы, которые уже устарели. В ходе капитального ремонта их следует убрать, чтобы жилье стало уютнее:
- Демонтировать комнатный гардероб, встроенный в стену.
- Заполнить нишу под подоконником на кухне, чтобы она стала теплее.
- Убрать антресоли в коридоре, он сразу станет выше и просторнее.
- Заделать окно между ванной и туалетом для сохранения приватности.
Четырехкомнатный ремонт обязательно должен быть капитальным. За годы использования старого советского дома, внутри износились коммуникации. Нужно выполнить замену сантехники, электропроводки, радиаторов отопления. В ходе ремонта необходимо выровнять стены, чтобы современные отделочные материалы выглядели красиво.
Балкон не подходит для объединения с жилой зоной, его конструкция не сохраняет тепло. Но, выполняя четырехкомнатный ремонт, можно расширить балкон за счет выноса подоконника и передней стенки. Установка панорамного остекления сделает уютным пребывание на балконе. Возможно использовать его как зону для отдыха, рабочий кабинет, творческую мастерскую.
В перепланировке четырехкомнатной хрущевки возможно реализовать почти любые идеи, так как общий размер квартиры относительно большой. Но прежде чем начинать комнатный ремонт, следует провести согласование архитектурного проекта. Четырехкомнатная квартира хрущевка может иметь несущие внутренние стены, их расположение зависит от серии и номера дома.
Чтобы сделанная перепланировка не уменьшила прочность конструкции здания, необходимо убедиться в ее безопасности. Если четырехкомнатный проект соответствует принятым нормам, вы получите разрешение и сможете изменить комнатный план без риска для своей семьи и соседей.
Планировка 4 комнатной хрущевки. Особенности оформления
Планировка 4 комнатной хрущевки. Особенности оформления
Четырех комнатные хрущевки – это редкость, но все же квартиры этого типа иногда встречаются и ремонт такой квартиры нередко вызывает затруднения. Площадь данного помещения составляет в среднем 60-70 квадратных метров, этот размер вполне равноценен обычному трехкомнатному квартирному помещению. Поэтому планировка на этой площади будет весьма несложной.
В четырёхкомнатном помещении малогабаритного типа имеются 3 спальных, гостиная, кухонная комната и санузел. Для того чтобы помещения были не загроможденными и функциональным, важно при обустройстве и ремонте все делать правильно. В этом деле поможет знание определенных особенностей оформления:
- в первую очередь следует выбрать дизайн помещения, а именно его стиль. Он должен не только создавать красивый, полноценный, гармоничный внешний вид, но и расширять каждую комнату. Поэтому наибольший акцент нужно делать на светлые элементы, многофункциональные предметы мебели и светлое освещение всего пространства;
- если вдруг нужно увеличить одну из комнат, то для начала стоит выяснить, какие комнаты используются по назначению, а именно если семья состоит из трех человек – папа, мама и ребенок, то потребуется 3 отдельных помещения. Значит, четвертую комнату можно расширить. Если она располагается рядом с кухней, то можно убрать стенку и сделать помещение еще больше. В результате можно получить большую кухню, в которой можно с легкостью готовить еду, принимать гостей и проводить различные праздничные мероприятия;
- оформление стен — стены лучше всего оформлять в светлых тонах без мелких и контрастных рисунков.
Применение обоев с этим типом фона может привести к ограничению пространства и нарушению стиля дизайна комнат. Желательно посмотреть фото с вариантами оформления стен квартир с 4 комнатами; - выбор материала для пола — для пола выбрать можно практический любой вид материала, главное, чтобы он был не сильно ярким и совпадал с общим видом дизайна помещения;
- оформление потолка — потолок можно побелить, отштукатурить, установить натяжной потолок, выполнить облицовку из зеркального или глянцевого материала. Главное, не стоит устанавливать многоуровневые конструкции, они уменьшат высоту комнат;
- выбор мебели — как выбрать мебель для каждой комнаты? Это достаточно сложная задача, ведь нужно это сделать так, что выбранные предметы не уменьшали пространство, а, наоборот, дополняли дизайн комнат. Хорошо будут смотреться модульные конструкции небольшого размера. Также можно посмотреть фото с вариантами размещения мебели в малогабаритных квартирах;
- правильная расстановка освещения — осветительные приборы лучше применять точечного типа. Световые приборы следует расставлять по всему периметру каждой комнаты. Также для гостиной важно осветить центр помещения, для спальни рекомендуется применять более светлое и в то же время расслабляющее освещение, для кухни нужно делать упор на освещение обеденной зоны и зоны для приготовления пищи;
- гармония цвета — все предметы в комнатах должны сочетаться со стилем интерьера. Не стоит применять контрастные, яркие предметы, которые в итоге нарушат общий дизайн. Можно использовать контрастные цвета, которые будут дополнять друг друга. Лучше делать помещение более светлым, белые и светлые цвета делают комнаты просторнее и шире.
Планировка хрущевки 2 комнаты угловая. Планировка 2х комнатной хрущевки
Типовая хрущевка имеет очень маленькую кухню – 5-6 квадратов. Ещё одна особенность – невысокие потолки до 2,7 метров. Двушки без перепланировки зачастую бывают неудобны, особенно, если вторая комната проходная.
Стандартная площадь двухкомнатной хрущевки – около 43-44 кв метров. Дома пятиэтажные. В большинстве своем комнаты смежные, окна выходят на одну сторону (за исключением угловой квартиры с двумя окнами). В качестве достоинств хрущевки можно выделить наличие кладовки и балкона.
Рассмотрим самые распространенные типы планировок подробней.
Книжка
Такая планировка считается самой неудачной: проходная комната с широким дверным проемом играет роль столовой, а в семье с детьми – ещё и спальни. Уединенности в таком пространстве добиться трудно. Чтобы разделить помещения, придется пожертвовать частью комнаты. Без перегородок, на снос которых необходимо получить разрешение, хрущевку можно превратить в просторную студию.
На фото маленькая угловая кухня со встроенным холодильником и столом, вписанным в подоконник.
Трамвайчик
Такое народное название (также употребляется слово «паровозик») планировка получила за расположенные друг за другом комнаты, напоминающие вагоны. Гостиная с балконом является проходной, но переделка решает эту проблему: если отсечь часть комнаты и превратить ее в коридор с двумя входами, в получившейся нише можно организовать систему хранения.
На фото комната в кремовых тонах с акцентной стеной в телевизионной зоне.
На фото проект двухкомнатной хрущевки 44 кв. м.
Распашонка
Вполне удобная планировка, при которой комнаты разделены кухней и прихожей, но такой тип хрущевки встречается нечасто. Также ее называют «бабочкой» благодаря схожести комнат с симметричными крыльями.
На фото крошечная кухня, где глянцевые белые шкафчики-нивидимки занимают всё межпотолочное пространство.
Перепланировка двухкомнатной хрущевки вагончиком. Перепланировка «хрущевки». С чего начинать?
С правового ликбеза. Не стоит думать, что, будучи собственником жилья, владелец вправе с этим жильем делать что угодно. Законом на владельцев жилья налагается ответственность, которая закреплена в Жилищном кодексе РФ.
Очень важно! Жилищный кодекс дает определение перепланировке и переустройству жилого помещения. Первый термин – это изменение конфигурации жилого помещения. По закону, все изменения должны быть внесены в технический паспорт квартиры. Второй – это установка, замена или перенос инженерных сетей, санитарно-технического, электрического и другого оборудования. И тоже с внесением изменений в техпаспорте жилого помещения. В лучшем (для вас) случае, при продаже, обмене квартиры внести изменения в техпаспорт все равно придется. Можно «нарваться» на штраф и предписание все вернуть в первоначальный вид. Этим перечень возможных неприятностей при самовольной перепланировке не заканчивается и последствия для владельца жилья могут быть гораздо более печальными.
Процедура получения разрешения на перепланировку – это предмет отдельной статьи. Если ваши планы не включают снос несущих конструкций и перенос кухни на место жилой комнаты, разрешение получить не очень сложно. Несомненным плюсом «хрущевок» является то, что внутренние стены в них в основном ненесущие и их, после получения разрешения, можно сносить, устраивать новые дверные проемы и т. д. Это значительно расширяет возможности перепланировки подобных квартир. Такие действия относятся к так называемой простой перепланировке, их проще согласовать и для получения разрешения не нужно разрабатывать проект, достаточно на полученный в БТИ поэтажный план нанести планируемые изменения.
Источник: https://milyj-dom.ru-land.com/stati/pereplanirovka-dvushki-v-hrushchevke-pereplanirovka-2-h-komnatnoy-hrushchevki-bystro-i-prosto
Перепланировка 4 комнатной квартиры 62 кв м. Перепланировка трёшки в типовой панельке: 7 схем (бесплатно)
Что можно сделать с типовой квартирой 80 кв. м без существенной перепланировки? Например, найти место для дополнительной спальни, обустроить гардеробную или перенесли кухню в коридор.
Типовая планировка
Квартиры в домах типовой серии П-111М довольно просторные – трёшка занимает 80 кв.
м. Гостиную 22 кв. м и широкий коридор разделяет ненесущая стена, которую можно перенесли, чтобы сделать перепланировку. А симметричные спальни 12 кв. м ограничены несущими стенами, поэтому их изменить уже не получится. Площадь кухни допускает различную планировку даже с островом и барной стойкой. К тому же в некоторых случаях проём можно перенести на несущую стену в гостиную.
Вариант 1
Изначальная планировка квартиры довольно неплоха, поэтому можно ограничиться удачной расстановкой мебели. В гостиной предусмотрим диванную зону и рабочий стол у окна, на кухне – угловой гарнитур со всей необходимой техникой. Дальние комнаты используем в качестве спальни и детской, в каждой из которых установим шкаф вдоль стены, смежной с санузлом. А ширину коридора используем для размещения очень вместительной системы хранения.
Вариант 2
В этом варианте площадью гостиной пожертвовали ради более удобного входа на кухню и в санузел. В стену гостиной с одной стороны встроили шкаф, с другой – широкий рабочий стол на двоих. Линейный гарнитур на кухне позволяет установить большой обеденный стол на шесть персон. Меньшие комнаты превратятся в детскую и спальню со стандартным комплектом мебели.
Вариант 3
Один из вариантов типовой планировки предполагает вход на кухню из гостиной. Так оба помещения будут более просторными. Это позволит на кухне установить барную стойку и более длинный угловой гарнитур, а на место коридора встроить шкаф для верхней одежды. Стену между гостиной и коридором можно снести, оставив лишь небольшой простенок, например, с имитацией камина. Со стороны холла за ним можно скрыть мини-гардеробную.
Вариант 4
Этот вариант очень похож на предыдущий, но возводить гардеробную здесь не стали, ограничившись лишь системой шкафов разной ширины напротив друг друга. Кроме того, на балконе при кухне установили обеденный стол. А вместо кабинета здесь появилась комната для двоих детей. Чтобы уместить на 12 квадратах всё необходимое, выбрали двухъярусную кровать и широкий письменный стол во всю стену у окна, который заканчивается стеллажами для книг и игрушек.
Вариант 5
Площадь гостиной и ширина коридора позволяют перенести стену между ними и превратить трёхкомнатную квартиру в четырёхкомнатную. Гостиная получится проходной и тёмной, поэтому можно вмонтировать в стену окно или выложить её из стеклоблоков. Меньшие по площади жилые комнаты отведём под спальню и детскую для старшего ребёнка. А 14-метровую детскую по соседству с гостиной разделят двое младших (или однополых) детей. У окна установим для них два письменных стола, а две кровати разделим стеллажом.
Вариант 6
Планировка в этом варианте примерно такая же. Но если дети старше, то им можно предоставить больше свободы и расположить их спальни в глубине квартиры. Планировка детских комнат абсолютно симметричная – в каждой помимо кровати есть шкаф, письменный стол у окна и пара стеллажей рядом с ним. Ещё один шкаф встроим в специально возведённую нишу в гостиной. Под систему хранения отведём целую стену в спальне. В четырёхметровом санузле заменим типовую ванну на угловую гидромассажную.
Источник: https://detali-interera.ru-land.com/stati/remont-4-h-komnatnoy-kvartiry-osobennosti-oformleniya
Перепланировка 3 комнатной хрущевки. Три варианта перепланировки двухкомнатной хрущевки
Стандартная двухкомнатная квартира в хрущевке имеет два смежных жилых пространства, кладовку, мини-кухню, прихожую и ванную. Проживание в таких апартаментах не приносит особого комфорта, поэтому следует подумать о возможных вариантах перепланировки. Итак, если изначально ваша квартира была такой как на представленном фото, то можно выбрать три варианта ее трансформации.
Квартира-офис для одного или двух жильцов
Здесь была объединена гостиная с кухней и прихожей, чтобы создать комфортную зону для встречи гостей. Спальня также была расширена на пятнадцать сантиметрам благодаря смещению перегородки. В результате этого в комнате сна получилось создать гардеробную.
Особенностью данной планировки стал мини-кабинет, который отделили от гостиной стеклянной перегородкой с раздвижными дверями.
Ванная стала более функциональной, так как чашу для купания заменили душевой кабиной, стиральной машиной, а также столешницей с ящиками для хранения предметов.
Совет! Для оформления небольшой квартиры лучше выбрать цветовой контраст. Темное с сочетании со светлым делает пространство визуально более вместительным.
Двухкомнатная квартира для семьи из трех человек
Гостиная соединилась с коридором и автоматически увеличилась. Спальня стала больше благодаря смещению перегородки на пятнадцать сантиметров, чтобы поставить кровать для ребенка. Гардеробная остается на том же месте, как и в первом примере. Кладовая появилась в коридоре. Санузел имеет ванну, умывальник, стиральную машину и унитаз, то есть все необходимое для семьи с ребенком.
Кухня увеличена и отделена от гостиной раздвижными дверями из стекла, чтобы в случае необходимости можно было объединить эти комнаты в одну. На уровне дверей будет отлично смотреться широкий шкаф в нише.
Совет! Стены узкой спальни следует окрасить в белый цвет, чтобы расширить комнату. Не думайте, что такое помещение будет подобно больничной палате, так как его можно декорировать настенными наклейки ярких расцветок. Шкаф-купе с зеркальными дверцами наиболее уместен в небольшом помещении.
Хрущевка для большой семьи
Трансформировать хрущевку можно до неузнаваемости. В третьем варианте перепланировки хрущевка из двух стандартных жилых комнат превратилась в благоустроенную квартиру с полноценным коридором с дверями во все помещения. В квартире две жилых комнаты: первая — это спальня с гардеробной для родителей, вторая — детская для двух ребятишек. Квартира без гостиной. Есть отдельная функциональная кухня и ванная комната.
Совет! Мини-гардеробная никогда не будет лишней. Сделать ее более современной позволят стеклянные дверцы, наполняя комнату дополнительным светом.
| Россия Содержание Конец сталинской эпохи принес немедленную либерализацию в нескольких
аспекты советской жизни. Коллективное лидерство и восстание ХрущеваСталин умер, не назвав наследника, и никто из его соратников не право сразу же претендовать на высшее руководство.Сначала коллеги покойного диктатора пытались править совместно с Маленковым занимая высшую должность премьер-министра. Первый вызов этому Это произошло в 1953 году, когда могущественный Берия замышлял переворот. Однако Берия, наживший много врагов за время своего кровавого пребывания в должности начальника службы безопасности, арестован и расстрелян по распоряжению Президиума. Его смерть уменьшила чрезмерную мощь тайной полиции, хотя жесткий контроль партии над органами госбезопасности закончился только распад самого Советского Союза (см. Внутренняя безопасность до 1991, гл.10). После устранения Берии борьба за престол
тонкий. Маленков нашел серьезного соперника в лице Хрущева, которого
Президиум избран первым секретарем (сталинское звание генсека). На ХХ съезде партии, состоявшемся в феврале 1956 г., Хрущев
еще больше продвинул свои позиции в партии, осудив сталинские
преступления в драматической «тайной речи». Хрущев показал, что
Сталин произвольно ликвидировал тысячи членов партии и
военачальников, тем самым способствуя первым советским поражениям в
Вторая мировая война и установила то, что Хрущев охарактеризовал как
пагубный культ личности.Этим выступлением Хрущев не только
дистанцировался от Сталина и от его ближайших соратников,
Молотова, Маленкова и Лазаря Кагановича, но он также отказался от
использование диктатором террора как инструмента политики. Как прямой результат
кампании «десталинизации», начатой хрущевскими
речи, освобождение политических заключенных, начавшееся в 1953 г., было
активизировались, и некоторые из жертв Сталина были посмертно
реабилитирован.Хрущев усилил свою кампанию против Сталина на
Двадцать второй съезд партии в 1961 г., получив одобрение на удаление
Тело Сталина из Мавзолея Ленина, где оно изначально находилось
предан земле. После ХХ съезда партии Хрущев продолжал расширять его влияние, хотя он все еще сталкивался с противодействием. Его соперники в Президиум, спровоцированный поворотами советской внешней политики на Востоке Европа в 1956 году, потенциально угрожая экономическим реформам, и Кампания десталинизации, объединившаяся, чтобы проголосовать за его отставку в июне 1957 г. Однако Хрущев потребовал передать дело на рассмотрение в суд. ЦК КПСС, где пользовался сильной поддержкой.В ЦК отменил решение Президиума и исключил Противники Хрущева (Маленков, Молотов, Каганович), которые Хрущев назвал «антипартийную группу». В отход от Сталинская процедура, Хрущев не отдавал приказы о заключении в тюрьму или казни его побежденных соперников, но вместо этого поместили их в относительно второстепенные офисы. Хрущев приступил к дальнейшему укреплению своей власти в последующем месяцы.В октябре он снял с должности маршала Жукова (который помогал Хрущеву). подавить «антипартийную группу») из Управления обороны министра, предположительно потому, что опасался влияния Жукова в вооруженной силы. Хрущев стал премьер-министром в марте 1958 года, когда Булганин ушел в отставку, тем самым официально подтвердив свое доминирующее положение в государстве. а также в партии. Несмотря на свое звание, Хрущев никогда не осуществлял диктаторские
авторитет Сталина, при этом он никогда полностью не контролировал партию, даже
на пике своего могущества. Внешняя политика при Хрущеве Практически сразу после смерти Сталина началось коллективное руководство.
изменение поведения советской внешней политики для улучшения отношений
с Западом и новые подходы к неприсоединившимся странам. Маленков
изменил тон, выступив против ядерной войны как против
угроза цивилизации. Хрущев изначально противоречил этой позиции,
говоря, что только капитализм будет уничтожен в ядерной войне, но он
принял точку зрения Маленкова после того, как закрепил свою внутриполитическую позицию.В 1955 году, чтобы ослабить напряженность между Востоком и Западом, Хрущев признал
постоянный нейтралитет Австрии. Встреча с президентом Дуайтом Д. Эйзенхауэром
в Женеве позже в том же году Хрущев подтвердил приверженность Советского Союза
«мирное сосуществование» с капитализмом. Взяв во внимание
развивающихся стран, Хрущев пытался завоевать расположение их
национальных лидеров, вместо того, чтобы следовать установленной советской политике
избегая правительства, поддерживая местные коммунистические партии.Советское влияние на международные отношения Индии и Египта,
как и в других странах третьего мира, началось в середине
1950-е годы. Вступление Кубы в социалистический лагерь в 1961 г. стало удачным ходом для
Советский Союз. С успехами новой дипломатии произошли и перемены. По уступая независимому подходу Югославии к коммунизму также в 1955 году поскольку своей кампанией десталинизации Хрущев создал возможности для волнения в Восточной Европе, где проводилась политика сталинской эпохи. особенно обременительный.В Польше беспорядки привели к изменению руководство коммунистической партии, которое Советский Союз неохотно признан в октябре 1956 г. Народное восстание против советского контроля затем вспыхнул в Венгрии, где местные коммунистические лидеры во главе с Имре Надь призвал к многопартийной политической системе и уходу от Варшавский договор (см. Глоссарий), оборонительный союз, основанный Советский Союз и его восточноевропейские сателлиты в 1955 году. Советская армия. подавил восстание в начале ноября 1956 года, унеся многочисленные жертвы.Хотя Венгерская революция подорвала авторитет Советского Союза в мировом общественном мнении, он продемонстрировал, что Советский Союз применит силу в случае необходимости сохранять контроль над своими государствами-сателлитами в Восточной Европе. За пределами советской сферы контроля Китай становился все более беспокойным
под руководством председателя Коммунистической партии Китая Мао Цзэдуна. Китайское недовольство
с новым советским руководством произошло из-за низкого уровня советской помощи,
слабая советская поддержка Китая в его спорах с Тайванем и Индией,
и новая советская доктрина мирного сосуществования с Западом, которая
Мао рассматривал как измену марксизму-ленинизму.Против хрущевских
желает, Китай приступил к программе ядерного оружия, заявив в 1960 году, что
коммунизм мог победить «империализм» в ядерной войне. В
спор между воинствующим Китаем и более умеренным Советским Союзом
переросло в раскол в мировом коммунистическом движении после 1960 г. Советские отношения с Западом, особенно с США, колеблется между моментами относительного расслабления и периодами напряжения и кризис. Со своей стороны, Хрущев хотел мирного сосуществования с Запада не только для того, чтобы избежать ядерной войны, но и для того, чтобы позволить советским Союз развивать свою экономику. Встречи Хрущева с Президентом Эйзенхауэром в 1955 году и президентом Джоном Ф.Кеннеди в 1961 году и его турне по Соединенные Штаты в 1959 г. продемонстрировали стремление советского лидера к принципиально гладкие отношения между Западом и Советским Союзом и его союзники. Однако Хрущеву также нужно было продемонстрировать советским консерваторов и воинствующих китайцев, что Советский Союз был твердой защитник социалистического лагеря. Таким образом, в 1958 году Хрущев бросил вызов статус Берлина; когда Запад не уступит его требованиям, чтобы западные сектора должны быть включены в Восточную Германию, он одобрил возведение Берлинской стены между восточным и западным секторами город в 1961 году.Для поддержания национального престижа Хрущев отменил встреча на высшем уровне с Эйзенхауэром в 1960 году после советских войск ПВО сбил самолет-разведчик США над территорией СССР. Наконец, недоверие к военным намерениям омрачило отношения между Востоком и Западом. в течение этого времени. Запад опасался последствий советских инноваций в космических технологиях и видел в наращивании советских военных нарождающийся «ракетный брешь» в пользу СССР. Напротив, Советский Союз чувствовал угрозу со стороны перевооруженных федеральных сил. Реформы и падение Хрущева За годы своего руководства Хрущев пытался осуществить
реформы в целом ряде областей. Проблемы советского сельского хозяйства, важнейшие
озабоченность Хрущева, ранее привлекавшая внимание
коллективное руководство, которое внесло важные нововведения в эту
область советской экономики. Государство поощряло крестьян расти больше
на своих приусадебных участках увеличены выплаты за урожай, выращиваемый на коллективных
фермы, и вкладывал больше средств в сельское хозяйство.В его драматической Деве
В ходе земельной кампании середины 1950-х годов Хрущев открыл обширные земельные участки.
сельскому хозяйству в северной части Республики Казахстан и соседних
районы Российской республики. Эти новые сельхозугодья оказались
подвержены засухе, но в отдельные годы давали отличные
урожаи. Однако более поздние нововведения Хрущева
контрпродуктивно. Попытки Хрущева провести реформу в промышленности и управлении организация создала еще большие проблемы. В политически мотивированном попытаться ослабить центральную государственную бюрократию, в 1957 году Хрущев сделал ушли с промышленными министерствами в Москве и заменили их областные советы народного хозяйства. Хотя он намеревался эти совнархозы чтобы быть более отзывчивым к местным потребностям, децентрализация промышленности привело к сбоям в работе и неэффективности.Связано с этой децентрализацией было решение Хрущева в 1962 году преобразовать партийные организации в экономические, а не административные направления. Результирующая бифуркация партийного аппарата в промышленный и сельскохозяйственный секторы на областного (областного) уровня и ниже способствовали беспорядку и оттолкнули многих партийных чиновников на всех уровнях. Симптоматика экономические трудности страны заключались в отказе в 1963 г. Особый семилетний хозяйственный план Хрущева (1959-65) на два года меньше его завершения. К 1964 году престиж Хрущева был подорван в целом ряде областей.
Промышленный рост замедлился, в то время как сельское хозяйство не показало нового прогресса.
За границей, раскол с Китаем, берлинский кризис и кубинское фиаско
нанесли ущерб международному авторитету Советского Союза, и усилия Хрущева
Улучшение отношений с Западом вызывало недовольство многих военных.
Наконец, реорганизация партии 1962 года вызвала беспорядки во всем мире.
Советская политическая иерархия.В октябре 1964 г., когда Хрущев был
отдыхая в Крыму, президиум снял его с должности и отказал
разрешить ему передать дело в ЦК. Пользовательский поиск Источник: Библиотека Конгресса США |
Новые свидетельства строительства Берлинской стены
Электронное досье CWIHP № 23
Пятьдесят лет назад 13 августа 1961 года восточные немцы закрыли границу с Западным Берлином, положив начало тому, что впоследствии стало известно как Берлинская стена. За одну ночь семьи, друзья, любовники, одноклассники и другие были отрезаны друг от друга, и семнадцать миллионов восточных немцев стали пленниками.Улицы, линии метро и водные пути были перекрыты между Восточным и Западным Берлином, а также между Западным Берлином и окружающей сельской местностью Восточной Германии. С момента создания Восточной Германии в 1949 году до 1961 года более двух миллионов восточных немцев бежали от коммунизма в поисках свободы на Западе. Лидер Восточной Германии Вальтер Ульбрихт более восьми лет требовал от Советов разрешения закрыть границу.
Советы долго сопротивлялись, утверждая, что весь коммунистический блок будет выглядеть ужасно, если они закроют границу в Берлине, чтобы остановить исход беженцев; это было бы признанием неудачи.Тем не менее, Ульбрихт никогда не отказывался от борьбы за закрытие границы и, наконец, получил разрешение и поддержку Советского Союза в конце июля 1961 года, всего за несколько недель до того, как в ночь с 12 на 13 августа была проведена операция «Роза». Как позже сказал Хрущев послу Западной Германии в Москве Гансу Кроллю, «Стена была заказана мной по настоятельному желанию Ульбрихта».
[1] Аналогичным образом генерал Анатолий Григорьевич Мерещко, заместитель начальника оперативного управления Группы советских войск в Германии один из официальных лиц, ответственных за окончательный согласованный план закрытия границы, недавно вспомнил: «Выполнить работу было проще, поскольку Ульбрихт уже много раз просил Хрущева закрыть границу.Но долгое время Хрущев этого не хотел. Однако подготовительная работа со стороны властей ГДР шла полным ходом ». [2]
Следующий документ публикуется здесь впервые на английском языке и взят из русского протокола длительной встречи в Москве советских лидер Никита Хрущев и лидер Восточной Германии Вальтер Ульбрихт 1 августа 1961 года обсуждают планы закрытия границы в Берлине. [Ссылка на документ: «Записки к разговору товарища Н.С. Хрущев с товарищем В. Ульбрихтом 1 августа 1961 года « ] Встреча длилась два часа пятнадцать минут. Протокол встречи был передан в 2009 году Матиасу Улю из Немецкого исторического института в Москве. Президентский архив Кремля депонировал документ в Российском государственном архиве новейшей истории (РГАНИ), где Уль нашел его. [3] Уль опубликовал документ в Германии в 2009 году [4], а немецкий историк Герхард Веттиг опубликовал документ в 2011 году в сборнике. документов, связанных с Берлинским кризисом.[5] В документе показаны рассуждения Хрущева и Ульбрихта о причинах закрытия границы в Берлине, сроках закрытия границы и некоторых трудностях, которые они ожидали в связи с этим.
По крайней мере с января 1961 года лидеры Восточной Германии разрабатывали подробные планы закрытия границы после получения разрешения Советского Союза. Действительно, с тех пор, как летом 1952 года советская и восточная немцы укрепили границу между Восточной и Западной Германией, оставив Берлин как единственное место для свободного передвижения между Востоком и Западом в пределах Германии, Ульбрихт стремился закрыть последнюю «лазейку». »В Берлине.В письмах и личных встречах Ульбрихт безжалостно призывал Советский Союз закрыть границу, а осенью 1960 года он даже начал прибегать к односторонним мерам на границе в Берлине, чтобы затруднить пересечение границы.
Это привело к многочисленным советским выговорам и к очень тревожным сообщениям советского посла в Восточном Берлине Михаила Первухина обратно кремлевским лидерам о том, что восточногерманские лидеры «иногда проявляли нетерпение и придерживались одностороннего подхода» по вопросу о границе с Западом. Берлин, «о чем свидетельствуют их усилия всеми возможными средствами как можно скорее прекратить свободное передвижение между Восточной Германией и Западным Берлином.[6]
Ульбрихту удалось загнать Советы в угол, в котором, если они хотели спасти своего коммунистического союзника из Восточной Германии, им пришлось бы закрыть границу, как он добивался. Но Ульбрихт не мог сделать это в одиночку и нуждался в советской военной помощи на заднем плане, чтобы удержать восточногерманский народ и западных союзников от любых существенных шагов по вмешательству в «Операцию Роза» и строительство Берлинской стены. Достижение этого сдерживающего эффекта действительно было одним из основных мотивов созыва лидеров Варшавского договора в Москве в начале августа.Как посол Первухин объяснил одному из своих заместителей Юлию Квицинскому в самолете, направлявшемся в Москву из Восточного Берлина: «Мы не можем допустить, чтобы действия ГДР [то есть закрытие границы] рассматривались только как ее план; это могло спровоцировать Федеративную Республику и ее союзников на интервенцию. Советский Союз и весь Варшавский договор должны встать перед ГДР, чтобы всем было ясно, что пути назад нет ». [7]
Состояние экономики Восточной Германии сыграло важную роль в их встрече 1 августа.Лидеры ожидали, что ситуация может стать еще хуже, если в ответ на закрытие границы западные немцы объявят экономический бойкот Восточной Германии и, таким образом, прекратят снабжать ГДР ключевыми товарами [8]. Другой связанной проблемой, обсуждавшейся двумя лидерами, было влияние потери стольких ключевых рабочих (инженеров, рабочих, интеллигенции), которые бежали на Запад, и то, как обеспечить Восточную Германию некоторыми заменами, будь то из других стран Восточной Европы или из других стран.
сам СССР.
Встреча состоялась накануне саммита лидеров стран Варшавского договора в Москве 3-5 августа. Таким образом, часть дискуссии между Хрущевым и Ульбрихтом касалась графика встречи, а также выступлений, которые Хрущев и Ульбрихт произнесут на встрече, оправдывая необходимость закрытия границы в Берлине [9]. Было ясно, что они оба ожидали, что восточноевропейские союзники будут недовольны предоставлением Восточной Германии экономической помощи [10].
В обсуждении есть несколько ссылок на мирный договор (поскольку мирного договора о Второй мировой войне с Германией еще не было), который Хрущев угрожал западным державам с ноября 1958 года, что он подпишет его с Ульбрихтом.Этим договором Хрущев объявил, что передаст советский контроль над подъездными путями между Западной Германией и Западным Берлином Ульбрихту. Однако из-за массового исхода беженцев из Восточной Германии и настойчивых просьб Ульбрихта закрыть границу, Хрущев, наконец, согласился на отдельные действия по закрытию границы в Берлине, но еще не подписал мирный договор с Восточной Германией. Хрущев надеялся, что ему удастся убедить Запад во главе с президентом США Джоном Ф. Кеннеди подписать мирный договор с обеими частями Германии, тем самым добившись признания Западом восточногерманского государства, которое Запад до сих пор отказывался признать. грант.В беседе с Ульбрихтом 1 августа Хрущев, похоже, полагает, что закрытие границы в Берлине подтолкнет Запад к окончательному согласию с этим [11].
Самое главное, что Хрущев и Ульбрихт обсуждают детали и сроки надвигающегося закрытия границы в Берлине. Они еще не определились со сроками, за исключением того, что это будет «через одну-две недели». Ульбрихт поднимает вопрос о сроках примерно в середине встречи, спрашивая: «Когда лучше всего? Что мы будем с этим делать? » Когда Хрущев не отвечает, Ульбрихт продолжает отвечать самому себе: «Технически мы могли бы подготовить это за две недели.Хрущев отвечает: «Реализуй, когда хочешь, мы можем быть готовы в любой момент».
Позднее на встрече советский лидер заключает: «Мы дадим вам одну-две недели, чтобы вы могли подготовиться экономически» на случай, если Западная Германия ответит экономическим бойкотом. Позже на этой неделе в Москве два лидера договорились закрыть границу в ночь с субботы 12 августа на воскресенье 13 августа, как сообщил Ульбрихт Восточногерманскому Политбюро 7 августа [12]. В июле Ульбрихт сказал послу Первухину, что наиболее благоприятное время для максимального повышения уровня неожиданности — это ночь с субботы на воскресенье.[13]
По крайней мере с 25 июля восточногерманские и советские военные руководители работали вместе над планами по закрытию границы, основанными на первоначальных планах Восточной Германии, дополненных советскими идеями. Восточные немцы составили всевозможные документы о деталях остановки движения поездов, метро, трамваев, лодок, автомобилей, самолетов и людей из Восточной Германии и Восточного Берлина в Западный Берлин, включая то, что делать с домами на границе. между Восточным и Западным Берлином. Теперь, на встрече 1 августа, Хрущев поделился своими идеями о том, как подкрепить эту восточногерманскую акцию «железным кольцом вокруг Берлина», слушая планы Ульбрихта относительно «домов с выходами в Западный Берлин, они будут замурованы».В остальных местах будут возведены заграждения из колючей проволоки. Колючая проволока уже доставлена. Все может произойти очень быстро ».
Действительно, все произошло очень быстро. К тому времени, когда большинство берлинцев проснулось в воскресенье, 13 августа, большая часть границы была огорожена колючей проволокой и бетонными столбами, охраняемыми вооруженными солдатами. В конце концов, желание Ульбрихта было выполнено — он закрыл границу с Западным Берлином, чтобы предотвратить побег других своих граждан [14].
Хоуп М.Харрисон — адъюнкт-профессор истории и международных отношений в Университете Джорджа Вашингтона и старший научный сотрудник проекта «Международная история холодной войны», а также председатель Консультативного совета Института Кеннана в Международном центре ученых имени Вудро Вильсона.
Она является автором книги Dating the Soviets Up the Wall: Советско-восточно-германские отношения, 1953-1961 гг. (Princeton University Press, 2003) и ее обновленной, расширенной версии на немецком языке, Ulbrichts Mauer: Wie die SED Moskaus Widerstand gegen den Mauerbau brach ( Стена Ульбрихта: Как СЕПГ сломил сопротивление Москвы строительству стены , Propyläen Verlag, Берлин, 2011).Английская книга профессора Харрисон получила в 2004 году премию Шульмана за «лучшую книгу по международным отношениям бывшего советского блока» Ассоциации славянских, восточноевропейских и евразийских исследований, а ее книга на немецком языке широко освещалась в немецких СМИ в этом году. лето приурочено к 50 -й -й годовщине строительства Берлинской стены.
Документ
«Заметки к беседе товарища Н.С. Хрущева с товарищем В. Ульбрихтом 1 августа 1961 года»
Footnotes
[1] Hans Kroll, Lebenerinnerungen eines Botschafters (Cologne and Berlin) Kiepenheuer & Witsch, 1967), стр.512, 526.
[2] Манфред Вильке / Александр Дж. Ватлин, «Интервью с генералом Анатолием Григорьевичем Мерещко,« Arbeiten Sie einen Plan zur Grenzordnung zwischen beiden Teilen Berlins aus! » Немецкий архив (2/2011). http://www.bpb.de/themen/NAWPSE.html
[3] Российский Государственный Аркив Новейшей Истории (РГАНИ), Фонд 52, опись 1, дело 557.
[4] “Niederschrift eines des Genosprächs Chruschtschow mit Genossen W. Ulbricht am 1 августа 1961 г., Die Welt Online, 30 мая 2009 г., http: // www.welt.de/politik/article3828831/Das-Gespraech-zwischen-Ulbricht-und-Chruschtschow.html Die Welt ошибочно опубликовала это как телефонный разговор, хотя на самом деле это была личная встреча в Москве.
[5] Герхард Веттиг, изд., Chruschtschows Westpolitik 1955-1964, Gespräche, Aufzeichnungen und Stellungnahmen, Band 3, Kulmination der Berlin-Krise (Herbst 1960-Herbst 1962) (Мюнхен: Oldenbourg Verlag, 2011) 15.
С. 295-313.
[6] См. Встречи и сообщения по этому поводу 23 и 26 сентября, 18 октября, 24 октября, 30 ноября 1960 г. и 15 декабря 1960 г., а также 30 января 1961 г. и 19 мая 1961 г. в Харрисон, Driving Советы вверх по стене , стр.144-149, 151-53, 158-9, 166.
[7] Юлий Квизинский, Vor dem Sturm: Erringungen eines Diplomaten (Берлин: Siedler Verlag, 1993), стр. 181-82.
[8] Как оказалось, Западная Германия фактически не ответила эмбарго на Берлинскую стену, а продолжила торговлю с Восточной Германией, как и прежде.
[9] Перевод на английский язык вступительной речи Хрущева перед лидерами Варшавского договора 3 августа и пространной речи Ульбрихта 4 августа с обоснованием закрытия границы см. В Hope M.Харрисон, «Ульбрихт и конкретная« роза »: новые архивные свидетельства динамики советско-восточногерманских отношений и берлинского кризиса, 1958-1961», Рабочий документ № 5 Международного исторического проекта «Холодная война» (Вашингтон, округ Колумбия: Международный центр ученых им. Вудро Вильсона, май 1993 г., Приложения G и H, стр. 106-125.
[10] Действительно, когда это обсуждалось на встрече 4 августа, вспыхнули настроения по этому вопросу, когда союзники очень неохотно помогали Восточной Германии, поскольку каждый из них страдал от собственных экономических проблем и своей зависимости от страны. Западная помощь.Наконец, Хрущев завершил эту часть дискуссии 4 августа, сердито заявив: «Теперь, товарищи, мы все поможем ГДР. Я не буду говорить, кто из вас поможет больше всего. Все должны помогать и должны помогать больше ». Подробнее об этих обсуждениях на встрече Варшавского договора см. Harrison, Dating the Sovs Up the Wall , pp. 198-203.
[11] Хрущев оказывается в этом частично прав, а частично неправ. Закрытие границы действительно заставило США возобновить переговоры с Советским Союзом по Германии.Но как только эти переговоры начались и Хрущев увидел, что Берлинская стена разрешила исход беженцев из Восточной Германии, он больше не хотел рисковать тем, что его агрессивный, непослушный союзник из Восточной Германии может разрушить его отношения с США, и поэтому советский лидер не подписал сепаратный мирный договор с ГДР или передача контроля над западными подъездными путями к Ульбрихту, к большому огорчению восточногерманского лидера.
[12] « Protokoll Nr. 39/61 der ausserordentlichen Sitzung des Politbüros des Zentralkomitees am Montag, dem 7.Август 1961 г. в Sitzungssaal des Politbüros, Stiftung Archiv der Parteien und Massenorganisationen im Bundesarchiv (SAPMO-BArch), DY 30 / J IV 2/2/781.
[13] Квицинский, Vor dem Sturm , p. 180.
[14] О последних работах, подчеркивающих роль Советов в этом процессе, см. Manfred Wilke, Der Weg zur Mauer. Stationen der Teilungsgeschichte (Берлин: Christoph Links Verlag, 2011) и Герхард Веттиг, Chruschtschows Berlin-Krise 1958 — 1963: Drohpolitik und Mauerbau (Мюнхен: Oldenbourg Verlag, 20060
Биография: Nikita Khrushchev.
Первый секретарь ЦК КПСС 1953-1964 гг.Безусловно, самый колоритный советский лидер, Хрущев больше всего запомнился своими драматическими, часто грубыми жестами и «безрассудными схемами», направленными на достижение максимального пропагандистского эффекта, его восторженной верой в то, что коммунизм восторжествует над капитализмом, и тем фактом, что он был единственным советским лидером. когда-либо быть снятым с должности мирным путем — прямой результат постсталинской оттепели, которую он спровоцировал в 1956 году.
Шахтер, примкнувший к большевикам в 1918 году, Хрущев получил техническое образование благодаря Октябрьской революции и искренне поверил в преимущества рабочего государства.Поднимаясь по карьерной лестнице в партии, он стал членом Центрального Комитета в 1934 году и Политбюро в 1939 году. После смерти Сталина в 1953 году Хрущев стал первым секретарем партии в коллективном руководстве, которое возникло после того, как оно устранило Лаврентия Берия и его фракцию. . Впоследствии он использовал установившуюся технику Сталина, чтобы разделить и победить своих соперников, заменить их своим собственным народом и стать бесспорным лидером Советского Союза, с той разницей, что он не убивал этих людей, а поручал их таким далеким странам. и безобидные должности посла в Монголии.
В 1956 году на 20-м съезде Коммунистической партии Хрущев ошеломил делегатов своей так называемой «секретной речью», в которой в течение шести часов осуждал эксцессы сталинской эпохи и культ личности Сталина. До выступления все еще считалось табу говорить что-либо негативное о Сталине. Речь Хрущева в ретроспективе кажется несколько мягкой, поскольку масштабы ужасов Больших чисток и ГУЛАГа хорошо известны. Однако в то время его разоблачения (ограниченные только преступлениями Сталина против партии, а не страны в целом) были потрясающими.
Хрущев искренне верил в превосходство коммунизма и считал, что это лишь вопрос времени, когда он разрушит капиталистическую систему раз и навсегда. Он поставил смелые (и в конечном итоге недостижимые) цели «догнать Запад» в производстве продуктов питания, инициировав масштабные программы по освоению обширных территорий целинных земель в Казахстане и Сибири с помощью тысяч городских комсомольских добровольцев, которые принесли мало, кроме своих увлечение ими в открытые степи.Несмотря на то, что его называли экспертом по сельскому хозяйству, Хрущев просчитался, когда после поездки в Айову в 1959 году он стал большим энтузиастом кукурузы и решил привезти ее в свою страну, большая часть которой имеет неподходящий климат. На промышленном фронте Хрущев несколько ослабил упор Сталина на военное производство, что привело к расширению ассортимента потребительских товаров и повышению уровня жизни простых советских граждан.
Еще одним достижением хрущевской постсталинской «оттепели» было ослабление политического климата, в частности цензуры.«Один день из жизни Ивана Денисовича», рассказ Солженицына о жизни в лагерях ГУЛАГа, был опубликован в 1961 году по личному указанию Хрущева, и возникло целое диссидентское движение писателей и интеллектуалов. Хотя их преследовали и они вынуждены были действовать подпольно, это все же было серьезным изменением, поскольку любые диссиденты просто не остались бы в живых при Сталине.
В сфере внешней политики Хрущев также с энтузиазмом ставил высокие, но зачастую недостижимые цели, и любил резко пренебрегать Западом.
Он прилетел на саммит в Лондон на полузавершенном прототипе пассажирского самолета, чтобы продемонстрировать передовое состояние советской авиации (должным образом впечатлив своих хозяев, у которых в то время еще не было сопоставимого самолета). Призыв коммунизма быстро распространился по деколонизирующимся странам Азии, Африки и Латинской Америки, поскольку Советский Союз щедро выделял помощь на такие блестящие проекты, как строительство плотин и стадионов. За ошеломляющим пропагандистским ходом, совершенным Советским Союзом при запуске первого спутника, Спутника, последовали все большие и большие достижения, такие как первая собака, первый мужчина и первая женщина в космосе.Многие на Западе начали опасаться, что Советы действительно догоняют и скоро догонят их.
Увлечение Хрущева яркими жестами с самого начала не понравилось более консервативным элементам; многие Советы были очень смущены его выходками, такими как стук ботинком по трибуне во время выступления в Генеральной Ассамблее ООН. В партии были элементы, которые активно искали возможность его свергнуть. Их возможность появилась с Кубинским ракетным кризисом.В еще одном случае зрелищности, которую он не смог подкрепить делами, в 1962 году Хрущев развернул ядерные ракеты на новой коммунистической Кубе, в непосредственной близости от большинства крупных американских населенных пунктов. Благодаря разведывательной информации, полученной от Олега Пеньковского, советского двойного агента, Соединенные Штаты знали, что ракеты все еще были разработаны лишь частично и не представляют непосредственной угрозы. Президент Джон Кеннеди назвал Хрущева блефом, и последний был вынужден вывести ракеты с Кубы, потеряв при этом репутацию как дома, так и за рубежом.Хрущев так и не восстановил свой престиж после инцидента, а два года спустя был незаметно свергнут оппонентами в Политбюро — причем без кровопролития. Он провел остаток своей жизни в мирной пенсии и был единственным советским лидером, которого не похоронили в Кремлевской стене после его смерти.
Холодная война в независимой Африке — Написание антологии
Холодная война в независимой Африке
Джей Ди ’93
История Африки
Письменная цель: Написать исследовательскую работу объемом 10–15 страниц по теме, имеющей значение для истории Африки.
Движение за независимость в Африке в начале 1960-х предоставило возможности для внешней политики как Соединенным Штатам, так и Советскому Союзу. В год избрания Джона Ф. Кеннеди в Белый дом более пятнадцати африканских стран стали суверенными (Mazrui and Tidy, 362). США, отражая свое собственное антиколониальное наследие, симпатизировали развивающейся Африке. За годы работы в Сенате и месяцы предвыборной кампании Кеннеди пообещал признать и поддержать африканский национализм.С другой стороны, Советский Союз также видел отражение своей истории в Африке. Зарождающиеся социалистические революции возникали по всей Африке в ответ на империализм. Хрущев пообещал поддерживать национально-освободительные движения во всем мире. Поэтому СССР симпатизировал революционной Африке.
Однако холодная война умерила такие симпатии. Идеалы американской и советской политики в отношении Африки пали жертвой реалий сдерживания. В советской внешней политике антиамериканизм стал более важным, чем антикапитализм.С неохотой Хрущеву пришлось принять слабые идеологии и терпеть меняющиеся союзы среди своих африканских клиентов. Для США антикоммунизм помешал поддержать многие движения за независимость. Политические деятели США не могли полностью принять социалистических лидеров африканских стран. Более того, Кеннеди не мог противодействовать членам НАТО, которые также были колониальными державами.
Последствия холодной войны для Африки были подавляющими. Во многих отношениях. Это была вторая схватка за Африку. Великие державы (в данном случае Советский Союз и США).S.) хотел, чтобы Африка просто помешала друг другу владеть ею.
Экономическое и политическое развитие Африки было затруднено; независимость часто откладывалась. Ни советская цель социалистического развития, ни американская цель демократического государственности не были реализованы из-за огромных возможностей, представленных в независимой Африке.
Избрание Джона Ф. Кеннеди стало важной вехой в американо-африканских отношениях. Как председатель подкомитета по Африке сенатского комитета по международным отношениям Кеннеди поддерживал тесные контакты со многими лидерами африканских националистов.Выражая поддержку африканскому национализму, Кеннеди в 1957 году подверг критике политику невмешательства Эйзенхауэра в отношении французского колониализма в Алжире.
«Заморские территории рано или поздно, одна за другой, вырвутся на свободу и с подозрением будут смотреть на западные страны, которые препятствовали их шагам к независимости. . . Национализм в Африке нельзя оценивать исключительно с точки зрения исторических и юридических тонкостей, аргументированных французами и до сих пор признанных Государственным департаментом. Частота национальной самоидентификации происходит в результате быстрого возгорания, которое дождь репрессий просто не может погасить »(Mahoney, 20 ).
Во время кампании 1960 года Кеннеди упоминал Африку 479 раз. «Это продемонстрировало его острое и осознанное понимание значения для Соединенных Штатов формирующихся африканских стран» (Джексон, 38-39).
После избрания Кеннеди дипломатические назначения отражали озабоченность по поводу Африки. Кеннеди назначил губернатора Мичигана Г. Меннана Уильямса на должность помощника государственного секретаря по Африке. Уильямс, идеалист-либерал, был решительным сторонником гражданских прав и «оказался самым эффективным и надежным защитником нового подхода к Африке» (Noer, 63).Заместитель государственного секретаря Честер Боулз и посол ООН Адлай Стивенсон также призвали уделять больше внимания Африке.
В конце 1950-х — начале 1960-х годов советские политики также стали более серьезно относиться к Африке.
Хрущев возобновил интерес СССР к Третьему миру (Kempton, 1). В своей речи в январе 1961 года Хрущев заверил Москву в поддержке национально-освободительных войн. Позиция КПСС утверждала, что национальное освобождение не заканчивается политической независимостью. Если новая нация не разорвет колониальные связи и не претерпит радикальных социальных и экономических изменений, независимость будет только номинальной (Kempton, 36).Советским лидерам Африка казалась идеальным местом для развития революционных государств советского образца.
Африка обладала несколькими характеристиками, благоприятными для социализма: «естественное место коммуны в африканском крестьянском обществе, почти полное отсутствие местной буржуазии и растущая роль государственного сектора» (Legvold, 179). По словам Збигнева Бжезинского, у Советов было четыре отличительных преимущества в своих отношениях с Африкой: (1) африканцы соглашались с Советами в отношении связи между капитализмом и империализмом.Они считали, что эти двое связаны, и оба достойны уничтожения; (2) У африканцев и Советов был общий враг. Бывшие колониальные державы также были антикоммунистами; (3) Ни одна коммунистическая нация никогда не была колониальной державой в Африке; и (4) африканцы восхищались быстрым развитием Советского Союза и видели в нем модель своего собственного развития (Brzezinski, 205-207). Тем не менее Советы были разочарованы в своих попытках реализовать эту идеологическую возможность. Действительно, реалии африканской политики не укладывались в ограниченные концепции Советского Союза или Соединенных Штатов.
Обретя независимость в 1957 году, Гана была в авангарде африканского националистического движения. Кваме Нкрума стал лидером новой нации. Хотя партия Нкрумы занимала 71 место в парламенте из 104, его избирательный мандат был невелик. Партия Нкрумы набрала только 57 процентов голосов и потерпела поражение в северной Гане (Мазруи и Тиди, 59). Причины противодействия Нкруме проистекают из племен и последствий косвенного правления.
Под британским колониальным правлением вожди ашанти на севере сохранили большую часть своей власти.«Агитация Нкрумы за независимость и централизованное правление угрожала разрушить эту договоренность» (Махони, 160).
Похоже, что триумф Нкрумы станет благословением для Советского Союза. Нкрума поддерживал социализм и даже считал себя африканским Лениным (Mazrui and Tidy, 57). Но все было не так просто. Нкрума был панафриканистом, цель создания независимой и единой Африки превалировала над социалистической революцией. Кроме того, Нкрума опасался, что тесные отношения с Советским Союзом приведут к неоколониалистским отношениям.Совершенно осмотрительно Нкрума добивался помощи как от СССР, так и от США, уравновешивая друг друга и предотвращая внешнее господство (Мазруи и Тиди. 64).
У Советов были идеологические опасения по поводу Ганы. Хотя он считал себя африканским Лениным, Нкрума не был коммунистом и не придерживался ленинской концепции революции, движимой элитой. Партия Нкрумы «с самого начала была в основном массовой организацией» (Mazrui and Tidy, 57). Однако более существенными были недостатки, обнаруженные Иваном Потекиным, наиболее выдающимся ученым-африканистом СССР, во время его визита в Гану в конце 1957 года.
Потекин критиковал тот факт, что британская королева все еще была главой государства, что английский все еще был государственным языком, что британские институты все еще существовали в Гане и что христианские миссии все еще влияли на образование (Legvold, 43). Такие условия не способствовали укреплению экономической независимости или некапиталистического развития. Критика Потекина была законной. Находящаяся под влиянием Великобритании государственная служба Ганы «решительно выступала против формальных связей с советским блоком» (Legvold, 46). Гана и СССР не устанавливали дипломатических отношений до января 1958 года.Пройдет еще год, прежде чем две страны откроют посольства. Торговые отношения также развивались медленно. Экономические переговоры не начались до июня 1959 года; соглашение не было заключено до августа 1960 г .
; он не был ратифицирован до июня 1961 г. (Legvold, 47).
События за пределами Ганы, однако, превратят двойственное отношение Нкрумы к Советскому Союзу на поддержку. Нкрума был возмущен похищением в декабре 1960 года премьер-министра Конго Патриса Лумумбы. Он вовлек в заговор ООН и Запад. По словам Нкрумы, ООН поддержала соперника Лумумбы, главу государства Джозефа Касавубу (Нкрума, 120).
Советы быстро воспользовались гневом Нкрумы. В течение двух недель после похищения Лумумбы два из обещанных шести самолетов Ильюшина прибыли в Гану из Советского Союза. Вскоре после этого «Нкрума приветствовал советскую группу технической помощи из 34 человек для обсуждения проектов на сумму 40 миллионов долларов», включая плотину Вольта (Махони, 164).
Убийство Лумумбы еще больше укрепило позицию Нкрумы. Он пригласил президента СССР Леонида Брежнева на встречу с ним в Аккре и направил язвительное письмо президенту Кеннеди.Между тем в ганской прессе были опубликованы старые фотографии чернокожих рыбаков в США
.Кеннеди, однако, пробыл в Белом доме менее месяца на момент написания письма Нкрумы. Фактически, Лумумба был убит за несколько дней до того, как Кеннеди вступил в должность; новость о его убийстве была опубликована через несколько недель. Чтобы исправить отношения с Ганой и доказать свою приверженность Африке, Кеннеди пригласил Нкруму в Вашингтон. Встреча в марте 1961 г. увенчалась успехом. Они пришли к соглашению о политике Конго и договорились о переговорах с У.С. помощь плотине Вольта. Нкрума провозгласил «новую эру афро-американской дружбы» (Махони, 167).
Советы, должно быть, были ошеломлены этим дипломатическим разворотом. Однако личность Нкрумы предрасполагала его к личной дипломатии. Кеннеди любезно относился к Нкруме, даже познакомил его с миссис Кеннеди и дочерью Кэролайн. Возможно, преувеличенный, но по сути точный, информационный документ ЦРУ описал Нкруму как «политика, для которого рев толпы и похвалы подхалима так же необходимы, как воздух, которым он дышит.
. . (и который] отчаянно хочет, чтобы история вынесла благоприятный вердикт »(Махони, 166). Позднее Советы использовали ту же лесть во время поездки Нкрумы в Советский Союз в июле 1961 года. Хрущев сказал Нкруме, что он был кандидатом на Ленинскую премию мира. Хрущев также пригласил Нкруму присоединиться к нему во время его летних каникул.
Колебания между Востоком и Западом были типичными для внешней политики Ганы в начале 1960-х годов. Это заставило Кеннеди постоянно пересматривать проект плотины Вольта. Нкрума имел сильную оппозицию в администрации, включая членов Государственного департамента и генерального прокурора Роберта Кеннеди, считавшего Нкруму коммунистом (Mahoney, 172).Хрущев тоже был разочарован. Капризы внешней политики Ганы заставили Хрущева воздержаться от планов спонсировать создание коммунистической партии Ганы. Такие действия «вызвали бы недовольство Нкрумы, гарантируя скорейшее подавление коммунизма в Гане» (Legvold, 49). Без авангардной партии в авангардной нации африканской независимости советские идеологические цели неизбежно были сорваны.
Гвинея окажется более легким испытанием для советской политики. В некотором смысле Гвинея «олицетворяла все, чем Гана не была» (Legvold, 60).Под руководством Секу Туре Гвинея отклонила референдум во Франции 1958 года о конституционном союзе. Де Голль предупреждал Туре, что голосование «против» будет равносильно провозглашению независимости. Возмущенная Франция разорвала отношения с Гвинеей, создав вакуум, который Советы были только счастливы заполнить.
В экономическом отношении советский экспорт в Гвинею вырос с 9,3 процента от общего объема в 1959 году до 44,2 процента годом позже. Экспорт в Советский Союз увеличился с 16,2 процента до 22.9 процентов За тот же период (Легволд, 75). В политическом плане Туре согласовывал внешнюю политику Гвинеи с советскими. Туре поддерживал планы Хрущева по разоружению и советскую интервенцию в Конго. Он также предоставил убежище в столице Конакри африканским революционным движениям и предоставил Советам эксклюзивный доступ к их лидерам.
Советские политики начали рассматривать Гвинею как образец правильного развития Африки.
Хотя их политические цели казались синонимами, мотивы Гвинеи и Советского Союза не были идентичными.В то время как Советы хотели повлиять на баланс сил между Востоком и Западом, Гвинея придерживалась «бескомпромиссного желания сохранить свою независимость в неприкосновенности» (Legvold, 120). Отражая этот дух, Туре провозгласил в апреле 1960 года, что «если некоторые люди захотят основать гвинейскую коммунистическую партию, они должны понять, что PDG (партия Туре) будет противостоять им … ибо коммунизм — это не путь для Африки» (Legvold, 73). Более того, Туре стал жаловаться на качество советских товаров, отправляемых в Гвинею. Мало того, что товары были низшего качества, они часто были в неправильном количестве, отправлены не в то место или отправлены без необходимых запчастей.Кроме того, личный конфликт между Туре и советским послом усилил советско-гвинейскую вражду.
В этой обстановке избрание Кеннеди предложило Туре альтернативу. В свете изоляции, наложенной Францией, Гвинея зависела от советской помощи. Кеннеди, однако, сделал США еще одним вариантом. Туре произвели впечатление пронационалистические выступления Кеннеди в Сенате; Вскоре он начал намекать западным репортерам, что будет заинтересован в получении помощи от США. К маю 1961 года Вашингтон предоставил Туре пакет помощи в размере 25 миллионов долларов.И снова советская цель создания революционного социалистического государства в Африке была противоречива реальностью. И Нкрума, и Туре «одинаково утверждали, что их социализм включает в себя черты нескольких систем, не только марксизма-ленинизма, которые однозначно соответствуют африканским условиям» (Legvold, 115).
Хотя Гана и Гвинея привлекли первые попытки США и Советского Союза, в начале 1960-х годов главным очагом разногласий времен холодной войны было Конго. В январе 1960 года правительство Бельгии удовлетворило требования Конго о независимости.
Шесть месяцев спустя конголезцы были свободны от бельгийского правления. К сожалению, конголезцы не были готовы к независимости. Конго столкнулось с огромными проблемами. «Четырнадцать миллионов человек из более чем двухсот племенных групп не имели чувства национальной идентичности» (июль 452 г.). Лишь немногие имели высшее образование, и лишь немногие из них были подготовленными специалистами. Что еще хуже, многие европейцы в Конго, опасаясь возмездия со стороны угнетенных прежде чернокожих, бежали из страны. «С бегством европейцев гражданская администрация, магистратура и большая часть армии начали распадаться» (Джексон, 28).
Такой вакуум власти соблазнял обе сверхдержавы, особенно с учетом того, что Конго имело стратегическое и экономическое значение. Расположенная в центре Африки, Конго занимала жизненно важное положение, граничащее с девятью странами. С экономической точки зрения 49 процентов кобальта и 69 процентов промышленных алмазов Запад получал из Конго. Железо, золото, цинк, медь, боксит и тантал (минерал, необходимый для аэрокосмического производства США) были обнаружены в большом количестве (Jackson, 23).
Нестабильность Конго не заставила себя долго ждать.Всего через пять дней после обретения независимости вспыхнуло восстание. Конголезские солдаты в Леопольдвиле восстали против оставшихся у них бельгийских начальников. Своими речами об африканизации Конго премьер-министр Лумумба косвенно поддержал военное восстание. «Тем временем генерал-лейтенант Эмлле Янссенс, командующий Силами Публик, выступил против (конголезских) солдат, инсценировав свою стойкую колонизаторскую оппозицию в заявлении, которое он написал на доске в штабе Сил: До независимости = после независимости» (Джексон, 27).Местное восстание быстро распространилось по всей стране.
Лумумба вскоре выразил свою поддержку, уволив всех 1135 бельгийских офицеров. Однако глава государства Касавубу хотел сохранить контакты с Западом. Поэтому он выступил против решения Лумумбы.
Лумумба не мог позволить себе расстроить Касавубу. Только предоставив Касавубу пост главы государства, различные конголезские фракции позволили Лумумбе возглавить разнородное коалиционное правительство. Лумумба и Касавубу были вынуждены выработать общую политику.10 июля 1960 года Бельгия направила десантников для подкрепления своих войск, дислоцированных в Конго. Им удалось подавить восставших конголезцев, особенно в провинции Катанга. Такое вмешательство помогло ускорить отделение Катанги, поставщика половины национального дохода (Jury, 452). И Лумумба, и Касавубу обратились в ООН с просьбой о чрезвычайных силах.
Тем не менее между ними оставались идеологические разногласия. Касавубу был прозападным; Лумумба был ярым сторонником социализма (Джексон, 28).Администрация Эйзенхауэра заметила такое различие. Директор ЦРУ Аллен Даллес считал Лумумбу еще одним Фиделем Кастро. Эйзенхауэр отправил Лоуренса Девлина в американское посольство в Леопольдвилле, чтобы открыть офис ЦРУ в Конго. Миссия Девлина заключалась в том, чтобы способствовать свержению и убийству некоторых конголезских лидеров, предположительно включая Лумумбу (Джексон, 32).
Яростная оппозиция Эйзенхауэра Лумумбе проистекала из близорукости времен холодной войны. На заседании Совета национальной безопасности в августе 1960 года Эйзенхауэр заявил, что «мы говорили об одном человеке, изгнавшем нас из Конго, о Лумумбе при поддержке Советов» (Махони, 40).Эйзенхауэр не хотел «терять» Конго. Однако Эйзенхауэр не понял, что движение Лумумбы к Советскому Союзу было спровоцировано заблуждениями Запада.
Генеральный секретарь ООН Даг Хаммаршельд отказался отправить войска ООН в Катангу или согласиться на просьбу Лумумбы передать силы ООН под его командование. Более того, Эйзенхауэр утверждал, что причиной беспорядков был сам Лумумба, а не бельгийцы. Эйзенхауэр поместил антибельгийскую позицию Лумумбы в контекст его предполагаемых коммунистических симпатий (Mahoney, 38, 45).
Лумумба, однако, не сразу засчитал Запад.
ООН уже отправила 10 000 миротворцев, так что приспособление было возможно. 20 июля Лумумба изложил свое положение: «Мы будем получать помощь от дьявола или кого-либо еще, пока они выведут бельгийские войска. Если ни одна западная нация не помогает нам, почему мы не можем обратиться к другим нациям? » (Махони, 38).
США упустили из виду. Лумумбу пренебрегли во время его визита в Вашингтон в конце июля; Эйзенхауэр даже не встречался с ним.Не имея альтернативы, Лумумба принял предложение Хрущева о военной помощи. США довели Лумумбу до дьявола. Но расплачиваться за это заплатил Лумумба.
Принятие Лумумбой советской помощи вновь открыло раскол между Лумумбой и Касавубу. 5 сентября 1960 года Касавубу уволил Лумумбу с поста премьер-министра. Позже в тот же день Лумумба уволил Касавубу. По словам Нкрумы, не было никаких сомнений в том, кому отдавала предпочтение ООН в этом расколе. 6 сентября силы ООН закрыли радиостанцию Леопольдвиля.
«Это действие было незащищенным. Это лишило Лумумбу возможности обращаться к людям, в то время как Касавубу, свободно вещая по Браззавильскому радио, открыто разжигал анти-люмумбистские настроения. Как могло быть оправдано такое действие Организации Объединенных Наций, когда Лумумба был законным премьер-министром? » (Нкрума, 36).
Тем не менее, Лумумба перевел свою организацию в подполье. Касавубу, однако, не допустил, чтобы такая тайная деятельность продолжалась бесконтрольно. С помощью отчетов ЦРУ 1 декабря 1960 года силы Касавубу захватили Лумумбу.Однако новая администрация Кеннеди подумывала о помощи Лумумбе. Уходящая администрация Эйзенхауэра активизировала свои усилия ЦРУ против Лумумбы. Рука Касавубу была вынуждена. 17 января заключенный в тюрьму Лумумба был доставлен в Элизабетвфлле, был избит в пути и убит, вероятно, руками катангских властей (Махони, 70).
Теперь глава государства Касавубу, новый премьер-министр Сирил Адула и глава вооруженных сил Джозеф Мобуту были прозападными.Кеннеди удалось убедить ООН вторгнуться в Катангу.
Одновременно его политика восстановила порядок и помешала Советам продолжить одностороннюю военную операцию. Профессор Ричард Махони назвал политику Кеннеди в отношении Конго успешной.
«Кеннеди доказал, что в политике сдерживания может быть творческий аспект: обращаясь к внутренним истокам кризиса в Конго в дополнение к устранению внешней коммунистической угрозы, президент сделал сдерживание в Конго тем, чего никогда не было во Вьетнаме, — действенным и конструктивная политика, фундаментально созвучная националистической реальности »(Махони, 247).
Хотя может быть правдой, что убедить ООН вторгнуться в Катангу было легче без присутствия Лумумбы, склоняющегося к Советскому Союзу, трудно признать, что политика США совпадала с конголезскими интересами. Лумумба обладал наибольшей легитимностью из всех национальных лидеров. Партия Лумумбы была политической организацией, «наименее отождествляемой с племенными или этническими фракциями». Более того, его партия «была также главным гражданским институтом страны» (Джексон, 29). Преемник Лумумбы, Адула, оказался слабым лидером, у которого не было прочной основы народной поддержки.В 1964 году он пал в результате военного переворота, когда к власти пришел Мобуту.
Политика США в Конго фактически игнорировала реалии. Это было основано на непрочных отношениях. Вместо того чтобы поддерживать сильные законные институты, дипломатия США полагалась на личность. Более разумная политика могла бы помочь Лумумбе и убедить ООН восстановить порядок в Катанге. Оба действия уменьшили бы возможность советского влияния. Возможно, если бы Кеннеди пришел к власти раньше, он взял бы более прагматичный курс.Тем не менее, прецедент антикоммунизма над национализмом, который он создал в Анголе, не заставляет думать, что это было бы так.
Занимаясь ангольской политикой, Кеннеди позволил союзам времен холодной войны подавить его озабоченность африканским национализмом. По крайней мере, поначалу Кеннеди, казалось, отстаивал новый взгляд на Анголу.
Эйзенхауэр постоянно приказывал своему послу в ООН воздерживаться при голосовании против португальского колониализма. Однако дважды Кеннеди поручил послу Стивенсону проголосовать за антипортугальские резолюции.И в марте, и в апреле 1961 года США голосовали за резолюции, призывающие Португалию предоставить Анголе независимость.
США также начали налаживать отношения с лидером ангольской оппозиции Холденом Роберто. В марте 1961 года Роберто встретился с представителями государственного департамента. Хотя Роберто не взял на себя никаких обязательств, он произвел впечатление на американских политиков. «Роберто успешно сыграл на антикоммунизме США, отвергнув марксизм и подчеркнув радикализм своих оппонентов» среди ангольцев (Noer, 72).Его конкурирующая организация, МПЛА, была поддержана Советским Союзом. В качестве еще одного признака изменения отношения США сократили помощь Португалии с 25 до 3 миллионов долларов (Noer, 73).
Кеннеди, однако, встретил сопротивление в стране и за рубежом. Де Голль считал, что враждебный португальский диктатор Салазар может спровоцировать коммунистическую революцию в Лиссабоне. «Европейцы» в Госдепартаменте выступили за поддержку соратника по НАТО Португалии. Создание единого фронта против Советов было жизненно важным приоритетом.Кроме того, США хотели сохранить свои права на португальских Азорских островах. Азорские острова были важной базой для пополнения запасов топлива и транспортировки войск; он использовался во время недавних кризисов в Ливане и Конго. Берлинский кризис в августе 1961 года также усилил «европеистскую» позицию (Noer, 81–82).
В ответ португальское правительство наняло нью-йоркскую фирму по связям с общественностью Selvage and Lee. В пресс-релизах, адресованных американским СМИ, Селвадж и Ли «задокументировали», что ангольская революция была направлена из Москвы.Самым большим успехом Селваджа и Ли было убедить спикера Палаты представителей Джона Маккормика и представителя Типа О’Нила хвалить Португалию в выступлениях в Конгрессе (Noer, 74).
Между тем положение Роберто в Анголе становилось все более нестабильным. Африканцы начали критиковать Роберто за то, что он приблизился к США, утверждая, что помощь США через НАТО использовалась Португалией против ангольцев. Они отметили, что США не запрещают частным компаниям продавать португальцам такую военную продукцию, как джипы.Оппозиция Роберто МПЛА также укреплялась по мере увеличения советской помощи (Noer, 84-85).
Помощник секретаря Уильямс почувствовал, что Кеннеди начал дрейфовать в лагерь «европеистов». Затем Уильямс сменил тактику, приблизившись к Кеннеди. Вместо того, чтобы основывать свои аргументы на абстрактных концепциях национализма, Уильямс сосредоточился на конкретных вопросах торговли и антикоммунизма. Противодействуя аргументу Азорских островов, Уильямс утверждал, что отказ от поддержки африканского национализма может привести к потере U.S. базируется в Марокко, Ливии и Эфиопии (Noer, 88, 92–93).
Однако давление холодной войны вынудило Кеннеди капитулировать. Не случайно, когда в декабре 1962 года истекала аренда Азорских островов, США воздержались от двух антипортугальских резолюций в ООН в декабре 1962 года. К началу 1963 года США «смягчили публичную критику Португалии и отказались от неофициальных встреч с лидерами повстанцев »(Noer, 94-95).
Поскольку поддержка Роберто со стороны США так и не материализовалась, просоветская МПЛА стала доминирующей в Анголе.Как ни странно, политика холодной войны США привела к появлению потенциального союзника советского блока. МПЛА необязательно приходить к власти. Партия Роберто имела более широкую поддержку населения, включая большую этническую группу баконго. Напротив, поддержку МПЛА исходили в основном от Мбунду, которые составляли лишь 18 процентов населения. Более того, в военных столкновениях с португальцами организация Роберто проявила больший лидерский потенциал (Кемптон, 53).
Ни США, ни СССР не смогли достичь целей своей политики в отношении Африки.
Возможно, со стороны любой из сверхдержав было высокомерно пытаться навязать Африке свою повестку дня. Тем не менее незнание сверхдержавой условий в Африке гарантировало провал политики. Советы пытались навязать жесткую идеологию и экономический план региону, отчаянно нуждающемуся в экспериментах. Таким образом, Гана и Гвинея разочаровали в политике. Хотя США выступали за независимость Африки от колониализма, американские политики допустили, чтобы эти цели были омрачены антикоммунизмом.Впоследствии Конго превратилось в деспотическую диктатуру, а Ангола была доведена до «дьявола». Политика «холодной войны» оказалась неадекватной потребностям Африки после обретения независимости.
цитированных работ
Бжезинский, Збигнев. Африка и коммунистический мир, Stanford University Press: Stanford, California, 1963.
Джексон, Генри Ф. От Конго до Соуэто: внешняя политика США в отношении Африки с 1960 г., Morrow Publishing: Нью-Йорк, 1982 г.
июля, Роберт В.История африканского народа. Waveland Press: Prospect Heights, Иллинойс, 1992.
Кемптон, Дэниел Р. Советская стратегия в отношении юга Африки: связь с национально-освободительным движением, Praeger Press: New York, 1989.
Легволд, Роберт. Советская политика в Западной Африке, Издательство Гарвардского университета: Кембридж, Массачусетс, 1970.
Махони, Ричард Д. Дж. Кеннеди: испытание в Африке, Oxford University Press: Нью-Йорк, 1983.
Мазруи, Олл А и Майкл Тиди. Национализм и новые государства в Африке, Heinemann Publishing: Лондон, 1984.
Нкрума, Кваме. Challenge of the Congo, International Publishers: New York, 1967.
Ноер, Томас Дж. Холодная война и освобождение черных: США и правление белых в Африке. 1948-1968 гг. University of Missouri Press: Колумбия, штат Миссури, 1985.
Любовный роман с кукурузой — расследование
Никита Хрущев, советский лидер из крестьян, ставший преемником Сталина, хорошо известен тем, что спровоцировал кубинский ракетный кризис.
Однако люди могли не знать, что он любил кукурузу.Его увлечение кукурузой вынудило Советский Союз начать сельскохозяйственный крестовый поход, который разочаровал его почти так же, как и ракетный кризис унизил его. Хрущев, отчаянно нуждавшийся в увеличении поставок советских продуктов питания и столкнувшийся с конкуренцией с Соединенными Штатами, провел реформы, чтобы сделать кукурузу новой жемчужиной в короне масс, которая удовлетворяла бы их спрос на мясо и молочные продукты. В конце концов, его усилия продемонстрировали политическую некомпетентность и недальновидность больше, чем способствовали прогрессивным и благотворным изменениям.
Сельское хозяйство и продовольствие во время правления Сталина нуждались, мягко говоря, в улучшении. Нехватка продуктов питания и голодающие граждане того периода продемонстрировали, что Советское правительство больше заботилось о создании машин, чем о том, чтобы набивать бурлящие желудки своего народа. Хрущев признал преобладание обрабатывающей промышленности над выращиванием продуктов питания в советской политике и то, что в результате промышленность была в гораздо лучшем состоянии, чем сельское хозяйство. Он взял на себя решение проблемы и призвал к кампании по увеличению производства продуктов питания.В своем заявлении «О мерах по дальнейшему развитию советского сельского хозяйства» советский лидер уточнил, что «в период с 1940 по 1952 год промышленное производство выросло в 2,3 раза», но «общее производство сельского хозяйства (в сопоставимых ценах) выросло только на 10 процентов. . » Затем он заявил: «Самые неотложные задачи стоят перед нами в сфере животноводства, так как отставание здесь носит длительный характер, и без решительных мер мы не сможем быстро улучшить положение».
Опираясь на тоталитарное провидение, Хрущев объявил кукурузу ответом на жизненные проблемы нации, а обширный посев зерна — необходимой решающей мерой.По его мнению, кукуруза дала бы Советскому Союзу изобилие кормов для увеличения производства мяса и молочных продуктов.
Помимо гонки вооружений, Соединенные Штаты и Советский Союз также участвовали в менее известной «гонке кукурузы». Хрущев был ярым коммунистом и ждал того момента, когда его заявление о том, что «Советский Союз превзойдет все, что есть в Соединенных Штатах», включая производство кукурузы, станет реальностью. Он готовился, трудился и боролся за этот «веселый день». Однако история никогда не увидит этого дня.Его усилия оказались тщетными, и Соединенные Штаты оставались ведущей сельскохозяйственной державой.
Было бы неверно утверждать, что тоталитарный импульс и коммунистическое видение были единственными движущими силами сельскохозяйственных реформ советского лидера. Хрущев искренне заботился о сельском хозяйстве и был очарован им. Во время своего визита в Соединенные Штаты он особо выделил посещение фермы в Айове. Хрущев отправился в Кун-Рапидс, чтобы встретиться с фермером Розуэллом Гарстом. Как подробно рассказывалось в статье «Хрущев в кукурузной стране» в 1959 году в газете «Хрущев в кукурузной стране», опубликованной в журнале «Кэрролл Daily Times » за 1959 год, премьер-министр осмотрел ферму, узнал больше о методах ведения сельского хозяйства и был «особенно впечатлен механизированной системой кормления скота Гарста и его методом орошения полей с помощью стали трубы и оросители — стандартные функции на американских фермах, но не в Советском Союзе.
Первоначальный успех политики Хрущева в отношении кукурузы сделал этого человека ненадолго похожим на того чемпиона по кукурузе, которым он хотел быть. Но их окончательная неудача разрушила все надежды на то, что премьер войдет в историю как искусный и мудрый руководитель сельского хозяйства. Согласно очерку «Кукурузная кампания» профессора Джеймса фон Гельдерна, заведующего кафедрой российских исследований в колледже Макалестер, посевные площади под кукурузой увеличились с 4,3 миллиона гектаров в 1954 году до 18 миллионов всего год спустя. Кукуруза в изобилии росла на этих недавно освоенных сельскохозяйственных угодьях благодаря благоприятной жаркой погоде в течение двух лет подряд.
Хрущев неверно истолковал удачный выстрел как разумную и устойчивую политику. Он продолжал упорствовать и добиваться своего, засевая больше кукурузы, даже когда в районах не хватало «подходящих климатических условий и достаточного количества рабочей силы». Вскоре наступил сезон холодов и дождей, который расплатился за поспешность и неосмотрительность Хрущева. От 70 до 80 процентов посевных площадей под кукурузой лежало в руинах.
Никита Хрущев, советский лидер, самодельный человек, великий «Мистер. Кукуруза », мечтал об утопии на основе кукурузы, но в конце концов увидел миллионы бесплодных акров и, в конечном итоге, его отстранение от должности лидера советского сельского хозяйства и Советского Союза.
Внутреннее устройство Советского Союза — откровения из российских архивов | Выставки
Придя к власти в октябре 1917 г. в результате переворота. d’état, Владимир Ленин и большевики провели следующие несколько лет борьбы за сохранение своего правления против широко распространенных народная оппозиция. Они свергли временный демократического правительства и изначально враждебно относились к любой форме участие населения в политике.Во имя революционное дело, они использовали безжалостные методы для подавления реальные или предполагаемые политические враги. Небольшая элитная группа Большевики-революционеры, составлявшие ядро нового установил диктатуру Коммунистической партии, управляемую декретом, с ужасом.
Эта традиция жесткой централизации с принятием решений сосредоточены на высших партийных уровнях, достигли новых измерений при Иосифе Сталине.Как показывают многие из этих архивных документов, снизу было мало информации. Партийная элита определена цели государства и средства их достижения практически полная изоляция от людей. Они считали, что интересы личности должны были быть принесены в жертву интересам государство, которое продвигало священную социальную задачу. Сталинский «Революция сверху» стремилась построить социализм с помощью принудительная коллективизация и индустриализация, программы, которые повлекли за собой огромные человеческие страдания и человеческие жертвы.
Хотя этот трагический эпизод советской истории по крайней мере какая-то экономическая цель, полицейский террор навлек на партию и население в 1930-е годы, когда миллионы ни в чем не повинных люди погибли, не имея никакого объяснения, кроме как утверждать сталинские абсолютное доминирование. Когда закончился Большой террор, Сталин подчинил все аспекты советского общества строгому партийно-государственному контроль, не терпящий даже малейшего проявления местного инициатива, не говоря уже о политической неортодоксальности.Сталинский руководство чувствовало особую угрозу со стороны интеллигенции, чьи творческие усилия были сорваны строжайшими цензура; религиозными группами, которых преследовали и изгоняли под землей; и нерусскими национальностями, многие из которых были массово депортирован в Сибирь во время Второй мировой войны, потому что Сталин поставили под сомнение их лояльность.
Хотя преемники Сталина также преследовали писателей и диссидентов, они использовали полицейский террор более экономно, чтобы принуждать населения, и они стремились заручиться поддержкой населения ослабление политического контроля и введение экономических стимулов.Тем не менее строгая централизация продолжалась и в конечном итоге привела к к экономическому упадку, неэффективности и апатии, которые характеризовал 1970-е и 1980-е годы и способствовал Чернобыльская ядерная катастрофа. Программа Михаила Горбачева перестройка была реакцией на эту ситуацию, но ее успех был ограниченный его нежеланием упразднить бастионы советской власть — партия, полиция и централизованная экономическая системе — пока он не был вынужден сделать это после попытки переворота в Август 1991 г.К тому времени, однако, было уже слишком поздно либо коммунистическое руководство, либо СССР вместе взятые. После семидесяти четырех лет существования советская система рассыпался.
Репрессии и террор: все под контролем Сталина
Во второй половине 1920-х годов Иосиф Сталин установил этап для обретения абсолютной власти путем применения полицейских репрессий против оппозиционных элементов внутри Коммунистической партии.В механизм принуждения ранее использовался только против противники большевизма, а не против самих членов партии. Первыми жертвами стали члены Политбюро Лев Троцкий, Григорий Зиновьев и Лев Каменев, потерпевшие поражение и изгнанные из партии в конце 1927 года. Затем Сталин выступил против Николая Бухарина, которого объявляли «правой оппозицией», за выступая против его политики принудительной коллективизации и быстрой индустриализация за счет крестьянства.
Сталин и соратники, 1929 г.
Празднование 50-летия Иосифа Сталина в г. Кремль, 21 декабря 1929 г., с партией члены Орджоникидзе, Ворошилов, Куйбышев, Сталин, Калинин, Каганович и Киров, как смотрит статуя Ленина.
Добавьте этот элемент в закладки: // www.loc.gov/exhibits/archives/intn.html#obj1
В начало
Сталин устранил всю вероятную потенциальную оппозицию своему лидерство к концу 1934 года и был бесспорным лидером обоих партия и государство. Тем не менее, он приступил к чистке партии. рядовых и терроризировать всю страну широко распространенными аресты и казни. Во время последовавшего Большого террора, который включали пресловутые показательные процессы над бывшим большевиком Сталина. противников в 1936–1938 годах и достигла своего пика в 1937 и 1938 годах, миллионы ни в чем не повинных советских граждан были отправлены в трудовые лагеря или убит в тюрьме.
К тому времени, когда в 1939 году террор утих, Сталин сумел довести и партию, и общественность до состояния полного подчинение его правилу. Советское общество было настолько атомизированным, что люди так боялись репрессий, что массовые аресты больше не необходимый. Сталин правил как абсолютный диктатор Советского Союза на протяжении Второй мировой войны и до его смерти в марте 1953 года.
Перевод письма Рыкова
Репрессии и террор: убийства и чистки в Кирове
Убийство Сергея Кирова 1 декабря 1934 г. цепочка событий, завершившихся Большим террором 1930-х годов.Киров был полноправным членом правящего Политбюро, лидером Ленинградский партийный аппарат, влиятельный член правящая элита. Его забота о благополучии рабочих в Ленинград и его ораторское мастерство принесли ему немалую прибыль. популярность. Некоторые члены партии даже подходили к нему тайно с предложением занять пост генерального секретаря.
Сомнительно, что Киров представлял непосредственную угрозу для Преобладание Сталина, но он действительно не соглашался с некоторыми из сталинских политики, и Сталин начал сомневаться в лояльности членов Ленинградский аппарат.Нужен предлог для запуска широкая чистка, Сталин, видимо, решил, что убийство Кирова приведет к быть целесообразным. Убийство совершил молодой наемный убийца. по имени Леонид Николаев. Недавние свидетельства показали, что Сталин а НКВД спланировал преступление.
Затем Сталин использовал это убийство как повод для представления драконовские законы против политических преступлений и для проведения охота на ведьм предполагаемых заговорщиков против Кирова.В течение следующего четыре с половиной года, миллионы ни в чем не повинных членов партии и другие были арестованы — многие из них за соучастие в огромных заговор, который якобы стоял за убийством Кирова. Из С советской точки зрения, его убийство, вероятно, было преступлением века, потому что он подготовил почву для Большого террора. Сталин никогда больше не был в Ленинграде и снял одну из своих самых жестокие послевоенные чистки в городе — историческое окно на запад.
Перевод речи Бухарина
Исследование убийства Кирова
Добавьте этот элемент в закладки: //www.loc.gov/exhibits/archives/intn.html#obj2
В начало
Секретная полиция
С самого начала своего правления большевики полагались на сильная секретная или политическая полиция, чтобы укрепить свою власть.Первая тайная полиция, получившая название ЧК, была создана в Декабрь 1917 г. как временное учреждение, которое будет однажды упразднено. Владимир Ленин и большевики укрепили свою власть. Первоначальная ЧК во главе с Феликсом Дзержинским получила полномочия. только для расследования «контрреволюционных» преступлений. Но это скоро приобрел полномочия суммарного правосудия и начал кампанию террора против имущих классов и врагов большевизма.Хотя многие большевики относились к ЧК с отвращением и отвращением. выступил против его эксцессов, его дальнейшее существование было замечено как решающее значение для выживания нового режима.
После окончания Гражданской войны (1918–21) и угрозы внутренняя и внешняя оппозиция отступила, ЧК была распущен. Его функции были переданы в 1922 году Государству. Политическое управление, или ГПУ, которое изначально было менее мощным чем его предшественник.Репрессии против населения уменьшился. Но при партийном лидере Иосифе Сталине секрет полиция снова приобрела огромные карательные полномочия и в 1934 г. переименован в Народный комиссариат внутренних дел или НКВД. Больше не подлежит партийному контролю и не ограничивается законом, НКВД стал прямым орудием Сталина для использования против партии и страна во время Большого террора 1930-х годов.
Лаврентий Берия
После смерти Сталина в 1953 году верный Берия был очищен от коммунистической партии и власти и позже казнен.(Девушка на коленях у Берии — дочь Сталина Светлана; мужчина у правая, задняя, не опознана.)
Иосиф Сталин и Лаврентий Берия, советский политический деятель. лидер и чиновник тайной полиции во время Сталинская эпоха руководства, отдыхает на даче (русский загородный коттедж).
Добавьте этот элемент в закладки: // www.loc.gov/exhibits/archives/intn.html#obj3
Тайная полиция оставалась самой могущественной и внушающей страх Советский институт на протяжении всего сталинского периода. Хотя постсталинская тайная полиция, КГБ, больше не применяла таких крупномасштабные чистки, террор и насильственное депопуляция на народов Советского Союза, его продолжали использовать Кремлевское руководство для подавления политического и религиозного инакомыслия.Глава КГБ был ключевой фигурой в сопротивлении демократизации конца 1980-х гг. и в организации попыток путч августа 1991 года.
Добавьте этот элемент в закладки: //www.loc.gov/exhibits/archives/intn.html#obj4
В начало
ГУЛАГ
Советская система исправительно-трудовых лагерей была первой создан в 1919 году при ЧК, но только после В начале 1930-х годов население лагеря достигло значительных размеров.К 1934 году ГУЛАГ, или Главное управление исправительно-трудовых учреждений. Лагеря, затем при организации-преемнике ЧК НКВД, было несколько миллионов заключенных. Среди заключенных были убийцы, воров и других обычных преступников — наряду с политическими и религиозные инакомыслящие. ГУЛАГ, лагеря которого располагались в основном в отдаленных районах Сибири и Крайнего Севера, значительно вклад в советскую экономику в период Иосифа Сталин.Заключенные ГУЛАГа построили Беломорско-Балтийский канал, канал Москва-Волга, магистраль Байкало-Амур, многочисленные гидроэлектростанции, стратегические дороги и промышленные предприятия отдаленных регионов. Личный состав ГУЛАГа был также используется для лесозаготовок и добычи полезных ископаемых в стране. угля, меди и золота.
Сталин постоянно увеличивал количество назначенных проектов в НКВД, что привело к усилению зависимости от его труда.ГУЛАГ также служил источником рабочих для экономических проекты, независимые от НКВД, заключенных на различные хозяйственные предприятия.
Условия в лагерях были чрезвычайно суровыми. Заключенные получали неадекватный рацион питания и недостаточную одежду, что затруднял перенос суровой погоды и долгого рабочие часы; иногда заключенные подвергались физическому насилию со стороны охранники лагеря.В результате смертность от истощения и заболеваемость в лагерях была высокой. После смерти Сталина в 1953 г. Население ГУЛАГа значительно сократилось, а условия для сокамерники несколько улучшились. Исправительно-трудовые лагеря продолжали существуют, хотя и в небольших масштабах, в период Горбачева, и правительство даже открыло некоторые лагеря для проверки журналистов и правозащитники. По мере продвижения демократизации политические заключенные и узники совести все, кроме исчез из лагерей.
Письмо большевику
Добавьте этот элемент в закладки: //www.loc.gov/exhibits/archives/intn.html#obj5
В начало
Коллективизация и индустриализация
В ноябре 1927 года Иосиф Сталин начал свою «революцию». сверху », поставив перед советскими внутренняя политика: быстрая индустриализация и коллективизация сельское хозяйство.Его целью было стереть все следы капитализма. которые вошли в рамках новой экономической политики и преобразовать Советский Союз в кратчайшие сроки, не считая затрат, в индустриальное и полностью социалистическое государство.
Первая пятилетка Сталина, принятая партией в 1928 г., призвала к быстрой индустриализации экономики с упор на тяжелую промышленность. В нем были поставлены нереалистичные цели — увеличение общего промышленного развития на 250 процентов и 330-процентный рост только в тяжелой промышленности.Вся промышленность и службы были национализированы, менеджеры получили заранее определенные квоты на производство центральными плановиками и профсоюзами превращены в механизмы повышения производительности труда. Возникло много новых промышленных центров, особенно в Уральских гор, и тысячи новых заводов были построены повсюду. страна. Но поскольку Сталин настаивал на нереальном производственных планов, вскоре возникли серьезные проблемы.С наибольшая доля инвестиций вложена в тяжелую промышленность, широко распространена возникла нехватка товаров народного потребления.
Первая пятилетка также предусматривала преобразование советской сельское хозяйство из преимущественно индивидуальных хозяйств в систему крупные совхозы. Коммунистический режим считал, что коллективизация повысит продуктивность сельского хозяйства и будет производить достаточно большие запасы зерна, чтобы прокормить рост городской рабочей силы.Ожидаемый излишек должен был заплатить для индустриализации. Ожидается, что коллективизация освободить многих крестьян для промышленных работ в городах и позволить партии расширить свое политическое господство над остальное крестьянство.
Сталин проявлял особую враждебность к более богатым крестьяне или кулаки. Около миллиона кулацких дворов (некоторые пять миллионов человек) были депортированы и никогда больше о них не слышали.Принудительная коллективизация оставшихся крестьян, которая была часто оказывалось ожесточенное сопротивление, что приводило к катастрофическим нарушениям продуктивность сельского хозяйства и катастрофический голод 1932–1933 гг. Хотя первая пятилетка предусматривала коллективизацию только двадцати процентов крестьянских дворов, к 1940 г. примерно у девяноста семи процентов всех крестьянских хозяйств были коллективизированы и частная собственность почти полностью исключен.Принудительная коллективизация помогла добиться Сталинская цель быстрой индустриализации, но человеческие жертвы были неисчислимы.
Меморандум о принудительной коллективизации скота
Добавьте этот элемент в закладки: //www.loc.gov/exhibits/archives/intn.html#obj6
Следующее письмо 1932 года очень подробно описывает разрушительные эффекты коллективизации в Новосибирской области Сибири.An в сопроводительном отчете врача описывается вредное медицинское условия, которые произвел голод. Этот документ является одним из первых подробное описание коллективизации и ее результатов в Сибири.
Письмо Фейгина от 9 апреля 1932 г. Орджоникидзе (близкий друг Сталина), об условиях в колхозах
Читать перевод
Доктор.Меморандум Киселева от 25 марта 1932 г. условия.
Добавьте этот элемент в закладки: //www.loc.gov/exhibits/archives/intn.html#obj7
Следующий документ — приказ Ленина коммунистам в Пенза, 11 августа 1918 г., требуя публичного повешения. не менее 100 кулаков и отбирают у них хлеб, чтобы показать пример.
Добавьте этот элемент в закладки: //www.loc.gov/exhibits/archives/intn.html#obj8
В начало
Антирелигиозные кампании
Советский Союз был первым государством, в котором идеологическая цель искоренения религии. К этому В конце концов, коммунистический режим конфисковал церковную собственность, высмеял религии, преследовали верующих и пропагандировали атеизм в школы.Однако действия в отношении определенных религий были определялись интересами государства, и большинство организованных религий были никогда не был вне закона.
Главный объект антирелигиозной кампании 1920-х гг. а в 1930-е гг. была Русская Православная Церковь, у которой был самый большой количество верных. Почти все его духовенство и многие из его верующих расстреливали или отправляли в трудовые лагеря. Духовные школы были закрыты, церковные публикации были запрещены.К 1939 г. только около 500 из более чем 50 000 церквей остались открытыми.
После нападения нацистской Германии на Советский Союз в 1941 г. Иосиф Сталин возродил Русскую Православную Церковь для усиления патриотическая поддержка военных действий. К 1957 году около 22000 Активизировались русские православные церкви. Но в 1959 году Никита Хрущев инициировал собственную кампанию против русских Православная церковь и принудительное закрытие около 12000 церквей.К 1985 году действовало менее 7000 церквей. Члены церковные иерархи были заключены в тюрьму или выселены, их места взяты послушным духовенством, многие из которых были связаны с КГБ.
Кампании против других религий были тесно связаны с определенной национальностью, особенно если они признали иностранный религиозный авторитет, такой как Папа. К 1926 году римский Католическая церковь не имела епископов в Советском Союзе, и 1941 г. только две из почти 1200 церквей, существовавших в 1917 г., в основном в Литве, еще были активными.Украинский Католическая церковь (униатская), связанная с украинским национализмом, была насильственно подчинен в 1946 году Русской Православной Церкви, и Автокефальные Православные Церкви Белоруссии и Украины подавлялись дважды: в конце 1920-х и снова в 1944 году.
Нападения на иудаизм были повсеместными по всей советской период, и организованная практика иудаизма стала почти невозможно. Протестантские конфессии и другие секты также были преследуемый.Всесоюзный совет евангельских христиан Баптисты, учрежденные правительством в 1944 году, обычно были вынужден ограничить свою деятельность узким актом поклонения и лишены большинства возможностей для религиозного обучения и публикаций. Опасаясь панисламского движения, советский режим систематически подавлял ислам силой до 1941 года. вторжение в Советский Союз в том году привело правительство к проводить политику официальной терпимости к исламу, одновременно активно поощрение атеизма среди мусульман.
Письмо Горького Сталину
Добавьте этот элемент в закладки: //www.loc.gov/exhibits/archives/intn.html#obj9
Вот письмо Ленина через Молотова от 19 марта 1922 г. членам Политбюро, намечающее жестокий план действий против «Черного Сотни »духовенства и их последователей, бросивших вызов постановление правительства об изъятии церковных ценностей (предполагалось правительство будет использоваться для финансирования помощи голодающим).Ленин предложил арест и быстрое судебное разбирательство по делу повстанцев в Шуе, за которым последовал безжалостная кампания по расстрелу большого количества реакционного духовенства и буржуазии, и настаивал на том, чтобы вывоз ценностей из самые богатые церкви и монастыри будут быстро достроены.
Добавьте этот элемент в закладки: //www.loc.gov/exhibits/archives/intn.html#obj10
В начало
Атаки на интеллигенцию: ранние атаки
В первые годы после их прихода к власти в 1917 г. большевики приняли меры по предотвращению вызовов их новый режим, начиная с устранения политических оппозиция.Когда свободно избранное Учредительное собрание не признать примат большевистского правительства, Владимир Ленин распустил ее в январе 1918 года. Левая социалистическая партия. Революционная партия, протестовавшая против акции, вышла из большевистской коалиции в марте, и ее члены были автоматически заклейменные враги народа. Многочисленное противодействие группировки представляли военные угрозы из разных частей страны, ставя под угрозу выживание революции.Между 1918 г. а в 1921 году существовало состояние гражданской войны.
Политика большевиков по отношению к недоброжелателям и особенно к артикулированной интеллектуальной критике, значительно ожесточенной. Пресечение газет, первоначально описанное как временное мера, стала постоянной политикой. Ленин считал Конституционные демократы (кадеты) в центре заговора против большевистского правления. В 1919 году он начал массовые аресты профессоров и ученых, бывших кадетами, и депортированных Кадеты, эсеры, меньшевики, националисты.Большевистское руководство стремилось быстро очистить Россию от прошлого. лидеры, чтобы построить будущее с чистого листа.
Эти жесткие меры оттолкнули большое количество интеллигенции, поддерживавшие свержение царского приказ. Подавление демократических институтов вызвало сильные протесты со стороны ученых и художников, которые чувствовали себя преданными в своих идеалистическая вера в то, что революция приведет к свободному обществу.Писатели, эмигрировавшие вскоре после революции, опубликовали язвительные нападки на новое правительство из-за границы. Как результат, в дальнейших разрешениях на выезд артистам, как правило, отказывали.
Разочарование большинства интеллектуалов не повлияло. удивить Ленина, который видел в старой русской интеллигенции своего рода соперника своей «партии нового типа», которая одна могла бы принести революционное сознание рабочего класса.По его мнению, художники, как правило, служили буржуазным интересам. разжигали преследование интеллигенции по всей советской период.
Письмо Ленина Горькому
Добавьте этот элемент в закладки: //www.loc.gov/exhibits/archives/intn.html#obj11
В начало
Атаки на интеллигенцию: возобновление атак
Схема подавления интеллектуальной деятельности с периодические периоды расслабления помогли партийному руководству укрепить свой авторитет.После 1923 г., когда угрозы революция исчезла, интеллектуалы наслаждались относительная творческая свобода, в то время как режим сосредоточился на улучшение экономического положения страны за счет предоставления ограниченного бесплатного предприятие в рамках новой экономической политики Ленина.
Но в 1928 году ЦК установил право партия осуществляет руководство литературой; и в 1932 г. литературные и художественные организации были реструктурированы с целью продвижения особый стиль, называемый социалистическим реализмом.Работы, которые не работали способствовать построению социализма были запрещены. Ленин имел увидел необходимость повышения революционного сознания в рабочие. Сталин теперь утверждал, что искусство не должно просто служить общества, но делать это способом, определяемым партией и ее планы преобразования общества с манией величия. Как результат, художники и интеллектуалы, а также политические деятели стали жертвы Большого террора 1930-х гг.
Во время войны с нацистской Германией художникам разрешалось проникнуть в их работы патриотизмом и направить их против враг. Однако победа 1945 года вернула репрессии против отклонения от партийной политики. Андрей Жданов, который был представителем Сталина по вопросам культуры с 1934 года, возглавил атаку. Он злобно обличал таких писателей, как Анна. Ахматова, Борис Пастернак и Михаил Зощенко, которые были названы «антисоветскими, подрывниками социалистического реализма и чрезмерно пессимистично.”Физические лица были исключены из Союза Писатели и оскорбительные периодические издания были либо упразднены, либо взяты под непосредственный партийный контроль.
Жданов умер в 1948 году, но культурная чистка, известная как Ждановщина просуществовала еще несколько лет. Отмеченный режиссер Сергей Эйзенштейн и великие композиторы, такие как Сергей Прокофьева и Дмитрия Шостаковича осудили за «пренебрежение идеология и подчинение западному влиянию.”Атаки распространялся на ученых и философов и продолжался до тех пор, пока Смерть Сталина в 1953 году.
Памятная записка по роману Мариетты Шагинян
Добавьте этот элемент в закладки: //www.loc.gov/exhibits/archives/intn.html#obj12
В начало
Нападения на интеллигенцию: цензура
Творческие писатели пользовались большим авторитетом как в России. Империя и Советский Союз из-за уникальной роли литературы в качестве резонатора для более глубоких политических и социальных вопросов.Владимир Ленин считал, что литература и искусство могут быть используется в идеологических и политических, а также в образовательных целях целей. В результате партия быстро установила контроль. через печатные и электронные СМИ, книгоиздание и распространение, книжные магазины и библиотеки, и он создал или отменил газеты и периодические издания по желанию.
Идеология Коммунистической партии повлияла на творческий процесс с момента художественного вдохновения.Партия, по сути, служила музой художника. В 1932 г. партия учредила социалистический реализм как единственно приемлемая эстетика — измеряющая заслуги в зависимости от степени, в которой работа способствовала построению социализм в массах. Создан Союз писателей в том же году, чтобы привлечь писателей к делу марксизма-ленинизма. Госкомиздат (Государственный комитет по издательствам, типографии Растения и книжная торговля), совместно с Союзом секретариат, принимавший все издательские решения; само распределение бумаги стало скрытым механизмом цензуры.Главлит (Главная Управление по литературным и издательским делам), созданный в г. 1922 г., был ответственен за цензуру, которая появилась позже в творческий процесс. Руководство партии уже повлияло на процесс задолго до того, как рукопись попала в перо цензора. В Таким образом, советская система цензуры была более распространенной, чем система цензуры. царей или большинства других диктатур последнего времени.
Михаилу Горбачеву нужно было заручиться поддержкой писателей и журналисты, чтобы продвигать его реформы.Он сделал это, запустив его политика гласности »в 1986 году, бросая вызов основам цензура путем подрыва авторитета Союза писателей чтобы определить, какие работы подходят для публикации. Должностные лица Союза были обязаны размещать работы непосредственно в открытый рынок и позволить эти работы оценивать в соответствии с предпочтениям читателей, тем самым устраняя барьер между писатель и читатель и отмечая начало конца Цензура коммунистической партии.
Список лиц
Добавьте этот элемент в закладки: //www.loc.gov/exhibits/archives/intn.html#obj13
Статистический отчет от 21 марта 1988 г., председатель В. Чебриков. КГБ, детализируя расследование 1987 г. анонимные публикации, враждебные Советскому правительству и Коммунистическая партия.
Добавьте этот элемент в закладки: //www.loc.gov/exhibits/archives/intn.html#obj14
В начало
Нападения на интеллигенцию: подавление диссидентов
Коммунистический режим считал инакомыслием в Советском Союзе отказ от пролетарской борьбы и нарушение Марксизм-ленинизм, а значит угроза его авторитету.В пролетариат рассматривался как самоотверженно стремящийся к прогрессу в построение социализма, тогда как буржуазия рассматривалась как эгоистично борется за сохранение статус-кво. В соответствии с Марксистская идеология, классовая борьба были двигателем перемен во всем социальное развитие. Идеологический вклад Владимира Ленина должно было сделать саму партию исключительным «авангардом пролетариат »и, таким образом, окончательный арбитр того, что было пролетарским или буржуазный.Тайная полиция была привлечена для обеспечения соблюдения идеологии партии и подавления инакомыслия.
Поскольку легитимность партии опиралась на основные правильность его идеологии, провалы в практической политике были никогда не относился к самой идеологии. Для поддержания партии идеологический авторитет, религию нужно было сразу же осудить, и история периодически пересматривается, чтобы соответствовать текущей партийной линии. Книги и журналы, считавшиеся политкорректными, были удалено из библиотек.Ученые, художники, поэты и др., включая многих, кто не считал себя диссидентами, но чьи работы критиковали советскую жизнь, систематически подвергались преследовали и даже преследовали по закону. Часто их объявляли либо враги государства и заключенные, или сумасшедшие и преданные карательные психиатрические больницы.
Выступать за права человека или поддерживать свободу выражением было подвергнуть сомнению саму основу марксизма-ленинизма и легитимность правления партии.Среди тех, кого преследуют и преследовались всемирно известные художники и ученые, в том числе Нобелевский лауреат Борис Пастернак, вынужденный отказаться от своего приз; Александр Солженицын, которого насильно выселили из СССР; и Андрей Сахаров, исключенный из Академии художеств. Наук и внутренне сослан в закрытый город.
Лидером перемен был Михаил Горбачев, чья политика гласности позволили свободу слова и привели к отказ от марксистско-ленинской идеологии и потеря легитимности для вечеринки.
Письмо о Пастернаке
Добавьте этот элемент в закладки: //www.loc.gov/exhibits/archives/intn.html#obj15
В телеграмме от 1971 года известного советского физика Андрея Сахарова поддерживает протесты двух диссидентов, В. Файнберга и В. Борисова, госпитализированные в Ленинградское психиатрическое учреждение за «асоциальное поведение».»Сопроводительный меморандум от Министр здравоохранения СССР подтверждает законность и целесообразность госпитализировали двух диссидентов в учреждение, находящееся в ведении Министерство внутренних дел и отрицает использование изменяющих сознание лекарства в их лечении.
Телеграмма советского физика Андрея Сахарова поддерживая протесты двух диссидентов, В.Файнберг и В. Борисов. [изображение в настоящее время недоступно]
Читать перевод
Добавьте этот элемент в закладки: //www.loc.gov/exhibits/archives/intn.html#obj16
В начало
Украинский голод
Ужасный голод, охвативший Украину, Северный Кавказ и нижний Поволжье в 1932-1933 годах стало результатом политики насильственного вмешательства Иосифа Сталина. коллективизация.Наибольшие потери произошли в Украине, которая до этого самый продуктивный сельскохозяйственный район Советского Союза. Сталин был настроен сокрушить все остатки украинского национализма. Таким образом, голод сопровождался разрушительной чисткой украинской интеллигенции и украинских коммунистов вечеринка сама. Голод сломил волю крестьян сопротивляться коллективизации и покинул Украину с политическими, социальными и психологическими травмами.
Политика тотальной коллективизации, введенная Сталиным в 1929 году для финансирования индустриализация имела катастрофические последствия для производительности сельского хозяйства. Тем не менее, в 1932 году Сталин увеличил квоты на заготовку зерна для Украины на сорок четыре процента. Это означало, что зерна на корм крестьян не хватит, так как Советский закон требовал, чтобы зерно из колхоза не передавалось сельхозпроизводителям. членов фермы до тех пор, пока не будет достигнута квота правительства.Решение Сталина и методы, использованные для его реализации, приговорили миллионы крестьян к смерти голоданием. Партийные чиновники с помощью регулярных войск и тайной полиции части, вели беспощадную войну на истощение с крестьянами, отказавшимися отдать их зерно. Даже незаменимое семенное зерно было насильно изъято у крестьянские хозяйства. Любой мужчина, женщина или ребенок, пойманный на приеме даже горстки зерно из колхоза могло быть, и часто было, казнено или депортировано.Тех, кто, казалось, не голодал, часто подозревали в хранении зерна. НКВД и система не позволяли крестьянам покидать свои деревни. внутренних паспортов.
Число погибших от голода 1932-33 гг. На Украине оценивается от шести до семи миллионов. Согласно Советский автор: «Перед смертью люди часто теряли рассудок. и перестали быть людьми.И все же один из лейтенантов Сталина в Украине в 1933 году заявили, что голод удался. Он показал крестьянам, «кто здесь хозяин». Это стоило миллионы жизней, но колхозная система никуда не денется ».
Меморандум по проблеме зерна
Добавьте этот элемент в закладки: //www.loc.gov/exhibits/archives/intn.html#obj17
В начало
Депортации
Насильственное переселение Иосифа Сталина свыше 1.5 миллионов люди, в основном мусульмане, во время и после Второй мировой войны сейчас рассматривается многими экспертами в области прав человека в России как один из самых жестокие акты геноцида. Немцы Поволжья и семи национальностей Депортировали Крым и Северный Кавказ: Крымские Татары, калмыки, чеченцы, ингуши, балкарцы, карачаевцы и Месхетинцы. Другие меньшинства выселены с побережья Черного моря. в регион входили болгары, греки и армяне.
Сопротивление советской власти, сепаратизму и повсеместному распространению сотрудничество с немецкими оккупационными войсками было среди официальные причины депортации этих нерусских народы. Возможность немецкого нападения использовалась для оправдания расселение этнически смешанного населения Мцхеты, в юго-западной Грузии. Балкарцы были наказаны якобы за отправив в подарок Адольфу Гитлеру белого коня.
Депортированные были собраны и отправлены, как правило, в ж / д вагоны для перевозки скота в Узбекистан, Казахстан, Киргизию и Сибирь — районы, названные историками «человеческими свалками». Роберт Конквест. Большинство оценок показывают, что близко к две пятых пострадавшего населения погибли. Бедственное положение крымские татары были исключительно суровы; почти половина умерла от голод в первые восемнадцать месяцев после изгнания из их родина.
В феврале 1956 года Никита Хрущев осудил депортации как нарушение ленинских принципов. В его «Секретная речь» на ХХ съезде партии, он заявил, что украинцы избежали такой участи «только потому, что были слишком их было много, и некуда было их депортировать ». В том же году Советское правительство издало указы о восстановление Чечено-Ингушской Автономной Республики и Кабардино-Балкарская Автономная Республика, калмыцкое образование Автономная область и реорганизация Черкесов. Автономная область ‘в Карачаево-Черкесскую автономную область’.Однако крымские татары, месхетинцы и немцы Поволжья были реабилитированы лишь частично и по большей части не разрешено вернуться на родину до распад Советского Союза в 1991 году.
Меморандум о крымских татарах
Добавьте этот элемент в закладки: //www.loc.gov/exhibits/archives/intn.html#obj18
В начало
Еврейский антифашистский комитет
Еврейский антифашистский комитет (ЕАК) был основан в Куйбышева в апреле 1942 года.Два польских еврейских социалиста, Хенрик Эрлих и Виктор Альтеры (оба позже тайно казнен), возможно, предложил идею Лаврентию Берии, руководителю НКВД. Организация должна была служить интересам советской внешней политики и советских вооруженных сил через СМИ пропаганда — а также через личные контакты с евреями за границей, особенно в Великобритании и США, с целью влиять на общественное мнение и заручиться иностранной поддержкой Советские военные усилия.
Председателем ЕАК был Соломон Михоэлс, известный актер. и директор Московского государственного театра идиш. Шакне Эпштейн, идишский журналист, был секретарем и редактором журнала газета JAC, Einikait (Единство). Другие известные JAC членами были поэт Ицик Феффер, бывший член Бунда. (еврейское социалистическое движение, существовавшее с 1897 по 1921 год и поддерживал меньшевиков), писатель Илья Эренбург, генерал Аарон Кац из Военной академии им. Сталина и Борис Шимелович, главный хирург Красной Армии, а также некоторые неевреи из искусства, науки и вооруженные силы.
Через год после основания ЦАК был переведен в Москву. и стал одним из важнейших центров еврейской культуры и литература на идише до немецкого вторжения. JAC транслировать просоветскую пропаганду для иностранной аудитории несколько раз в неделю, рассказывая им об отсутствии антисемитизма и огромные антинацистские усилия, предпринимаемые советскими военными.
В 1948 году Михоэлс был убит секретными агентами Сталина, и в рамках недавно начатого официального антисемитского кампании, JAC был распущен в ноябре, и большая часть его члены арестованы.
Меморандум о Еврейском антифашистском комитете
Добавьте этот элемент в закладки: //www.loc.gov/exhibits/archives/intn.html#obj19
В начало
Чернобыль
В апреле 1986 года Чернобыль (на украинском языке Чернобыль) был малоизвестный город на реке Припять на севере центральной Украины. Практически случайно его имя было присвоено имени В.И. Ленин Атомная электростанция расположена примерно в двадцати пяти километрах вверх по течению.
26 апреля анонимность города исчезла навсегда, когда, во время испытания в 1:21 утра реактор № 4 взорвался и высвободил в 30-40 раз радиоактивность атомной бомбы упали на Хиросиму и Нагасаки. Мир впервые узнал худшей ядерной аварии в истории в Швеции, где аномальные уровни радиации были зарегистрированы на одной из ядерных удобства.
Считается одной из крупнейших промышленных аварий время, Чернобыльская катастрофа и ее влияние на ход Советские события трудно переоценить. Никто не может предсказать каково будет, наконец, точное количество человеческих жертв. Тридцать- одна жизнь погибла немедленно. Сотни тысяч Украинцам, русским и белорусам пришлось отказаться от всего города и поселки в тридцатикилометровой зоне крайнее загрязнение.Оценки различаются, но вполне вероятно, что около 3 миллионов человек, из них более 2 миллионов только в Беларуси, все еще живущие на загрязненных территориях. Город Чернобыль — это по-прежнему населен почти 10 000 человек. Миллиарды рублей имеют было потрачено, и еще миллиарды понадобятся для переезда общины и обеззараживают богатые сельхозугодья.
Чернобыль стал метафорой не только ужаса неконтролируемая ядерная энергетика, но и для разваливающегося советского система и ее рефлексивная секретность и обман, игнорирование безопасность и благополучие работников и их семей, а также неспособность для предоставления основных услуг, таких как здравоохранение и транспорт, особенно в кризисных ситуациях.Чернобыльская катастрофа сорвал амбициозную ядерно-энергетическую программу и сформировал молодое экологическое движение в мощную политическую сила в России, а также точка сплочения для достижения Независимость Украины и Белоруссии в 1991 году. в эксплуатацию Чернобыльской АЭС планируется всего остановка в 1993 году.
Документ о дефектах конструкции
Добавьте этот элемент в закладки: // www.loc.gov/exhibits/archives/intn.html#obj20
В начало
Перестройка
Из скромных начинаний на двадцать седьмом съезде партии в 1986 году перестройка, экономическая программа Михаила Горбачева, политическая и социальная реструктуризация стала непреднамеренной катализатор для демонтажа того, что заняло почти три четверти столетие, чтобы воздвигнуть: марксистско-ленинско-сталинский тоталитарный состояние.
Мир смотрел с недоверием, но с растущим восхищением когда советские войска ушли из Афганистана, демократические правительства свергнули коммунистические режимы в Восточной Европе, Германия воссоединилась, Варшавский договор угас, а холодная Война внезапно оборвалась.
Однако в самом Советском Союзе реакция на новый политика была смешанной. Политика реформ потрясла фундамент укоренившиеся традиционные основы власти в партии, экономике и общества, но не заменил их полностью.Новообретенные свободы собрания, слова и религия, право на забастовку и Многокандидатные выборы подорвали не только Советский Союз. авторитарные структуры, но также и привычное чувство порядка и предсказуемость. Давно подавленные, горькие межэтнические, экономические и социальные обиды привели к столкновениям, забастовкам и рост преступности.
Горбачев представил политику, направленную на начало установления рыночной экономики путем поощрения ограниченной частной собственности и рентабельность советской промышленности и сельского хозяйства.Но Коммунистическая система контроля и чрезмерная централизация власти и привилегии сохранялись, и новая политика не приносила экономических чудеса. Вместо этого стали длиннее очереди за дефицитными товарами в магазины, гражданские беспорядки и кровавые репрессии заявлены жизни, особенно среди беспокойных националистических групп населения окраины Кавказа и Прибалтики.
19 августа 1991 г. консервативные элементы в партии Горбачева. администрация предприняла неудачный государственный переворот, чтобы предотвратить подписание нового союзного договора на следующий день и восстановление власть и авторитет партии.Борис Ельцин, ставший Первый всенародно избранный президент России в июне 1991 г. резиденция правительства его Российской республики, известной как Белый Дом, сплотивший сопротивление организаторов переворот. Под его руководством Россия пошла еще дальше. реформы, когда Советский Союз распался на составных республик и образовали Содружество Независимых Состояния.
Документ о переходе к рыночной экономике
Добавьте этот элемент в закладки: //www.loc.gov/exhibits/archives/intn.html#obj21
Конференция, созванная в Ленинграде в октябре 1990 г. консервативная коммунистическая организация «Единство — за ленинизм и Коммунистические идеалы »потребовали кардинальных изменений в Михаиле. Политика Горбачева перестройки и ее реализация.Участники конференции обвинили Горбачева в том, что он следовал конечно, что бы восстановить капитализм в Советском Союзе, и они обратился к партийным организациям и членам с требованием созыв внеочередного съезда партии для снятия Горбачев от власти. Это постановление было передано Центральному Комитет от 29 ноября 1990 г., и назначил к исполнению два Члены Политбюро В. Ивашко, который отмечает документ, «Пожалуйста, подумайте об этом, и давайте поговорим.”
Постановление Общества «Единство за ленинизм и коммунист. Идеалы », 28 октября 1990 г., выражая недоверие к политика Горбачева как генерального секретаря Центрального Комитет. Стр. 2. Стр. 3.
Читать перевод
Добавьте этот элемент в закладки: //www.loc.gov/exhibits/archives/intn.html # obj22
В начало
TWE вспоминает: Джон Скали обедает, Хрущев пишет JFK, Кастро пишет Хрущев (Кубинский ракетный кризис, день одиннадцатый)
Журналисты живут за сенсацию. Быть первым, кто сообщает важные новости, — это билет к журналистской славе и богатству. Но что, если вы журналист, освещающий самую большую историю своей жизни, и внезапно становитесь ее участником? Вы рассказываете миру о том, что узнали, или сидите на этом? Дипломатический корреспондент ABC News Джон Скали оказался в таком затруднительном положении в пятницу, 26 октября 1962 года, на одиннадцатый день кубинского ракетного кризиса.
Скали вскоре после полудня позвонил Александр Фомин. Фомин официально был дипломатическим советником советского посольства в Вашингтоне. Однако на самом деле он работал начальником отделения КГБ в Вашингтоне. Его звали Александр Феклисов, и он руководил Клаусом Фуксом и шпионской сетью Розенберга. Фомин хотел пообедать. Скали как раз доедал сэндвич с вздором и не собирался есть больше. Но настойчивость, которую он уловил в голосе Фомина, убедила его, что смысл телефонного звонка не в еде.Поэтому он согласился встретиться в ресторане Occidental, расположенном всего в двух кварталах от Белого дома.
Подробнее на:
Соединенные Штаты
Нераспространение, контроль над вооружениями и разоружение
Скали вскоре обнаружил, что был прав. Как он позже рассказывал:
После того, как официант принял наш заказ, он [Фомин] сразу подошел к делу и сказал: «Война, кажется, вот-вот разразится, надо что-то делать, чтобы спасти ситуацию.»
И я сказал: «Ну, вам следовало подумать об этом, прежде чем вы представили ракеты».
Затем он сказал: «Может быть, выход; что бы вы подумали о предложении, согласно которому мы пообещали бы убрать наши ракеты под инспекцией Организации Объединенных Наций, а г-н Хрущев пообещал бы никогда больше не вводить такие наступательные ракеты на Кубу? Готов ли президент Соединенных Штатов публично пообещать не вторгаться на Кубу? »
Я сказал, что не знаю, но хотел бы попытаться выяснить.
Остальная часть еды была съедена в тишине, и, кстати, он получил мои крабовые лепешки, а я закончил его свиной отбивной, но он этого не заметил.
У воды
Джеймс М. Линдси анализирует политику, формирующую внешнюю политику США, и устойчивость американского могущества.
2-4 раза в неделю.Скали немедленно вернулся в свой кабинет в пресс-центре Госдепартамента и записал небольшую записку, в которой резюмировал сказанное ему Фомином.Свою служебную записку он передал Роджеру Хилсману, директору Бюро разведки и исследований Государственного департамента. Хилсман немедленно осознал его значение и передал его госсекретарю Дину Раску. Секретарь, в свою очередь, передал его президенту Джону Ф. Кеннеди и министру обороны Роберту Макнамаре.
Предложение Фомина к Скали было сделано, когда Джон Кеннеди становился все более пессимистичным в отношении направления, в котором движется кризис. Советские корабли с ракетными частями повернули назад, но на Кубе еще остались ракеты.С каждым днем становилось все больше. На утреннем заседании Исполнительного комитета он сказал своим советникам, что ракеты выйдут только в том случае, если Соединенные Штаты вторгнутся на Кубу, или предложили обменять удаление ракет на то, что хотели Советы. Теперь, благодаря увертюре Фомина, у него появился выход из кризиса.
После того, как Скали закончил свое появление в 18:00 на канале ABC News. по сети — он ничего не упомянул о своем обеде с Фоминым — его вызвали в Госдепартамент и проводили в кабинет Раска.Секретарь вытащил из кармана лист желтой бумаги легального формата и начал читать. Суть сообщения заключалась в том, что Скали должен сказать Фомину, что ему сказали «высшие должностные лица в правительстве Соединенных Штатов», что администрация видит возможности в его предложении.
Скали немедленно договорился о встрече с Фоминым в кофейне гостиницы «Статлер», в полуквартале от советского посольства. Он передал сообщение. Убедившись, что Скали сравнялся с ним, Фомин взял тридцать центов за две чашки кофе, которые они заказали.Когда кассир продолжил разговаривать с другом, вместо того, чтобы брать оплату, советский шпион шлепнул пятидолларовую купюру на прилавок и исчез в ночи.
Подробнее на:
Соединенные Штаты
Нераспространение, контроль над вооружениями и разоружение
Пока Скали передавал свое послание Фомину, Белый дом получал длинное и эмоциональное письмо от советского лидера Никиты Хрущева, которое должно было подтвердить предложение Фомина.Письмо было доставлено в посольство США в Москве в 9:43 утра по вашингтонскому времени. Более одиннадцати часов ушло на то, чтобы перевести письмо, передать его в Госдепартамент и доставить в Белый дом. Письмо началось с возмущенной защиты Хрущева того, почему Советский Союз встал на сторону Кубы. Затем Хрущев переключил передачи и выложил на стол предложение:
.Итак, проявим государственную мудрость. Предлагаю: мы со своей стороны заявим, что наши корабли, направляющиеся на Кубу, не будут нести никакого вооружения.Вы бы заявили, что Соединенные Штаты не будут вторгаться на Кубу своими силами и не будут поддерживать какие-либо силы, которые могут намереваться осуществить вторжение на Кубу. Тогда отпала бы необходимость присутствия наших военных специалистов на Кубе.
Далее он добавил:
Господин Президент, нам и вам не следует сейчас тянуть за концы веревки, на которой вы связали узел войны, потому что чем больше мы вдвоем потянем, тем крепче будет этот узел.И может наступить момент, когда этот узел будет завязан так туго, что даже у того, кто его завязал, не будет сил развязать его, и тогда нужно будет разрубить этот узел, и что это будет значить, не мне объяснять. Вам, потому что вы сами прекрасно понимаете, какими страшными силами располагают наши страны.
Следовательно, если нет намерения затянуть этот узел и тем самым обречь мир на катастрофу термоядерной войны, то давайте не только ослабим силы, тянущие за концы веревки, давайте примем меры, чтобы развязать этот узел. .Мы к этому готовы.
JFK и его советники сделали вывод из письма Хрущева и увертюры Фомина, что Советы предпринимали скоординированные усилия, чтобы протянуть оливковую ветвь. (Фактически, Фомин запускал пробный аэростат по собственной инициативе, и эти два события были скорее случайными, чем скоординированными.) Прорыв, на который они надеялись, наконец-то наступил.
По мере того, как Джон Кеннеди и его советники все больше надеялись на возможность мирного разрешения кризиса, кубинский лидер Фидель Кастро все больше убеждался в том, что U.Вторжение С. было неминуемым. Команданте не собирался терпеть поражение от рук «империалистов», не нанеся ответной боли. Поздно вечером он отправил «товарищу Хрущеву» телеграмму, в которой убеждал его нанести превентивный первый ядерный удар по Соединенным Штатам, если они нападут на Кубу: «Каким бы суровым и ужасным ни было решение, другого не будет». Кастро также приказал кубинским войскам стрелять по любым самолетам США, вторгшимся в воздушное пространство Кубы.
Пусть мебели там немного, но одно из самых важных мест оказывается изолированным.
Или же вода начнет сочиться внутри, размывая понемногу материалы, пока не разрушит основательную часть стены.
Установка мягкой мебели способна значительно повысить уровень повседневного комфорта.
Или же вода начнет сочиться внутри, размывая понемногу материалы, пока не разрушит основательную часть стены.
Если гостиная расположена около кухни, то можно убрать стенку между этими комнатами. В результате получится просторное помещение для приготовления еды, для приема гостей и проведения различных праздников.
Также можно стены покрасить или отштукатурить.


Применение обоев с этим типом фона может привести к ограничению пространства и нарушению стиля дизайна комнат. Желательно посмотреть фото с вариантами оформления стен квартир с 4 комнатами;
Лидер партии Никита С. Хрущев осудил
Тираническое правление Сталина в 1956 году, ознаменовавшее резкий разрыв с
мимо. Поскольку Хрущеву не хватало всеобъемлющей власти Сталина,
его время у власти было отмечено постоянным маневрированием против
политические враги были гораздо более реальными, чем были у Сталина.Партийный контроль
культурной деятельности стали гораздо менее ограничительными с началом
Первая «оттепель» в середине 1950-х гг. Хрущев попытался провести реформы в
как внутренняя, так и внешняя политика, с неоднозначными результатами. Во время его пребывания в должности
(1953-64), мировая политика стала намного более сложной по мере того, как ненадежность
продолжалась холодная война; Хрущев в конечном итоге был уничтожен
сочетание неудачных политических нововведений в сельском хозяйстве, партийной политики,
и промышленность.
был упразднен после его смерти) в сентябре 1953 года. Из крестьянского происхождения,
Хрущев возглавлял украинскую партийную организацию во время
и после Второй мировой войны, и он был членом советской политической
элита в позднесталинский период.Соперничество Маленкова и
Хрущев публично проявил себя в противопоставлении Маленкова.
поддержка увеличения производства товаров народного потребления и хрущевки.
постоянная поддержка дальнейшего развития тяжелой промышленности. После
Плохие показатели легкой промышленности и сельского хозяйства, Маленков ушел с поста
премьер-министром в феврале 1955 года. Потому что новый премьер Николай
Булганин, мало влияния или реальной власти, уход Маленкова
сделал Хрущева важнейшей фигурой в коллективе
лидерство.
Десталинизация воодушевила многих творческих и интеллектуальных деятелей.
круги, чтобы выступить против злоупотреблений прежнего режима. Несмотря на то что
Толерантность Хрущева к критическим творческим работам в период его
владения, новый культурный период, известный как
«оттепель» — явный разрыв с репрессиями
искусства при Сталине.
Его нападки на членов «антипартии».
группа »на XXI съезде партии в 1959 г. и
Двадцать второй съезд партии в 1961 году предполагает, что его противники сохранили
поддержка внутри партии. Относительная политическая незащищенность Хрущева
вероятно, объясняет некоторые из его грандиозных заявлений, например
его обещание 1961 года, что Советский Союз достигнет коммунизма к 1980 году.
Его желание подорвать оппозицию и успокоить критиков объясняло
характер многих его внутренних реформ и колебания в его
внешняя политика в отношении Запада.
Албания вышла из советского лагеря и стала союзником Китая, Румынии.
дистанцировался от Советского Союза в международных делах, и
коммунистические партии во всем мире разделились, должны ли они быть
ориентированы на Москву или Пекин.Монолитный блок мира
коммунизм разбился.
Республика Германия (Западная Германия), по системе союза Соединенных Штатов
которые, казалось, окружали Советский Союз, а западные
превосходная стратегическая и экономическая мощь. Чтобы компенсировать США
военное преимущество и тем самым улучшить советскую переговорную позицию,
Хрущев в 1962 году пытался установить ядерные ракеты на Кубе, но он
согласился отозвать их после того, как Кеннеди приказал блокаду вокруг
островное государство.После того, как приблизился к войне во время кубинской ракеты
кризис, Советский Союз и Соединенные Штаты предприняли шаги по сокращению
ядерная угроза. В 1963 году две страны установили «горячую»
линия «между Вашингтоном и Москвой, чтобы обеспечить мгновенное
коммуникация, которая уменьшит вероятность случайной ядерной
война. В том же году США, Великобритания и Советский Союз
подписали Договор об ограниченном запрещении ядерных испытаний, запрещающий ядерное оружие.
тестирование в атмосфере.
Его планы по выращиванию кукурузы и увеличению мяса и
молочное производство с треском провалилось, и его реорганизация коллектива
фермы в более крупные единицы вызывали неразбериху в сельской местности.