Перепланировка хрущевки 3 комнаты варианты: Перепланировка трёхкомнатной квартиры в хрущевке — фото, дизайн квартиры
Перепланировка 3-комнатной хрущевки
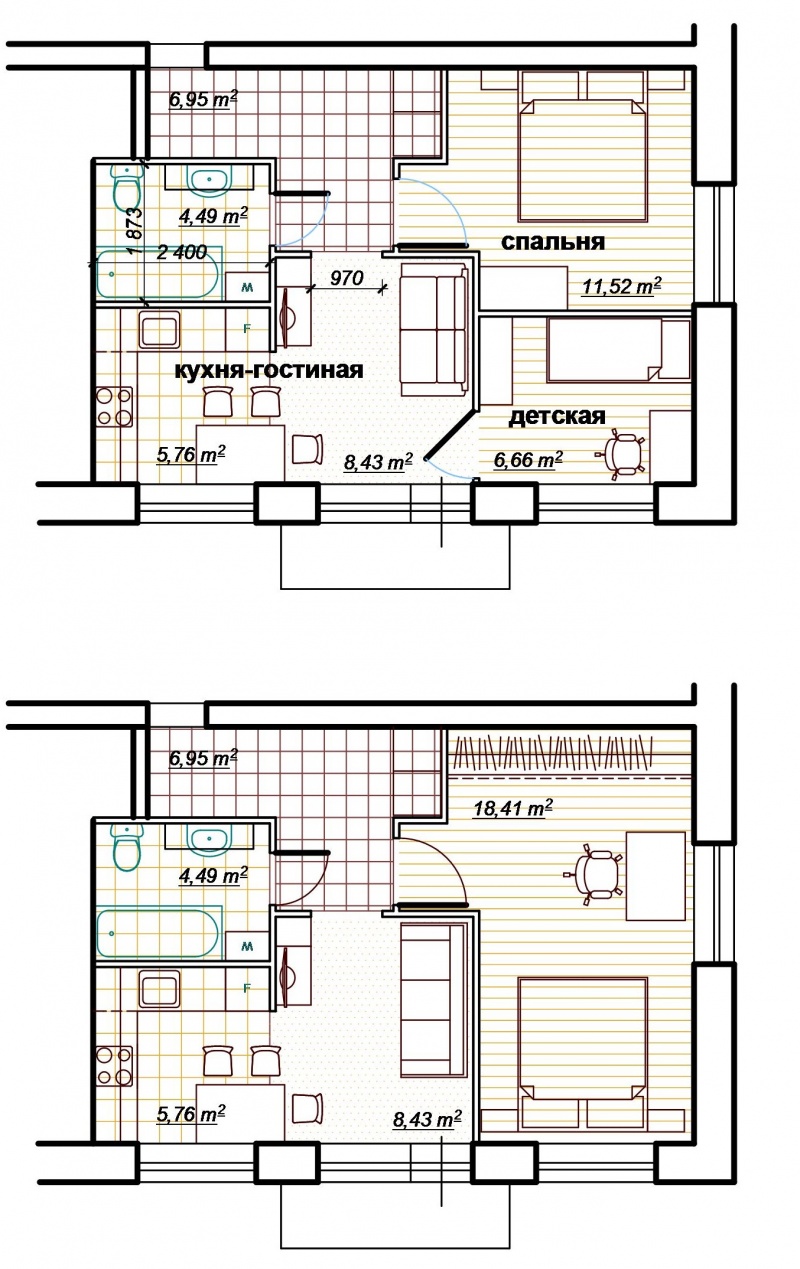
Ремонт в хрущевке часто начинают с переделки. Демонтаж может быть как не значительным, так и способным кардинально изменить квартиру. В целом, планировки таких квартир ограничивают идеи владельцев, поскольку реализовать и узаконить перепланировку по стоимости сопоставимо с продажей и куплей квартиры в новострое. Но не все готовы на такой шаг. Предлагаем вам интересный вариант перепланировки трехкомнатной хрущевки. Фото взято из сети, проект разработан украинским дизайнером Антоном Шляпиным.
Дизайн интерьера выполнен в светлых тонах. Голубой цвет в интерьере освежает пространство и придает квартире легкость и, на мой взгляд, мужскую стилистику.
Перепланировка трехкомнатной хрущевки
План квартиры после переделки
Перепланировке подверглись следующие помещения:
- Санузел. Ванная комната и туалет разделены. Вход в данные помещения перенесен на сторону прихожей.
- Комната, соседствующая с кухней определена под гостиную, из которой осуществляется вход в кухню.

Сама комната объединена с коридором, что расширяет пространство изначально малого помещения. На стене коридора предусмотрено размещение панели телевизора.
Следуя по коридору, расположены две спальни, их перепланировка не затронула.
Проект, действительно, очень удачный и заслуживает внимания. Идеи пригодятся также тем, кто ищет варианты перепланировки трехкомнатной Чешки. Только учитывайте, что в чешском проекте стена между кухней и комнатой несущая. Готовы реализовать визуализации данного дизайна при ремонте вашей квартиры. Отправьте свои пожелания и уточнения через обратную связь, чтоб узнать стоимость ремонта.
Интересно узнать ваше мнение в комментариях: Какие достоинства или недостатки вы видите в предложенной перепланировке? Быть может, вы сами живете в такой квартире? Какие ваши идеи были реализованы или хотите воплотить в данной планировке?
Будем вам признательны, если поделитесь статьей в социальных сетях.
Сохраните себе:
Согласовать 3 комнатную квартиру в хрущёвке
Многих людей не совсем устраивает планировка трехкомнатной квартиры. Причин для этого может быть очень много, иногда в таких квартирах могут быть недостаточно большие ванные и кухни. В возникшей ситуации, единственным является вариантом исправить дело — перепланировка 3 комнатной квартиры в новостройке и перепланировка 3 комнатной хрущевки. В этой статье можно узнать, как лучше перепланировать квартиру, чтобы она была удобной для вас.
Идеи перепланировки 3-х комнатной квартиры для небольшой семьи, которая состоит из 2-х человек.
Перепланировка трехкомнатной хрущевки – рассмотрим детально
Если с прихожей вы сразу можете увидеть небольшую примыкающую к ней комнату, которая будет не более чем 9 м2, рядом находиться кухня 6м2, ванная и туалет, а две остальные комнаты остаются смежными, то можно сделать очень интересную перепланировку в данной квартире. То, помещение, которое у вас будет самым большим, вы сможете оборудовать как гостиную.
Как сделать кухню большой?
Маленькая комната, которая прилегает к кухне, больше всего подойдет для того, чтобы вы смогли расширить кухню, ведь если эту комнату оставить как спальню, то вам постоянно будут мешать шумы в прихожей и на кухне, притом в комнате будет стоять запах от приготовления еды, что согласитесь, тоже не есть очень приятным.
Кроме того, имеется еще одно огромное преимущества такого решения, кухня станет большой, и вы сможете поставить всю необходимую технику, кроме того, оборудовать свою кухню как хотите, даже поставить стол посреди комнаты. Самую дальнюю комнату, вы сделаете зоной отдыха и сна.
Что касается, прихожей, то почти во всех прихожих имеются встроенные шкафы, лучшим решением будет сделать демонтаж и установить новый, усовершенствованный шкаф — купе, который позволит хранить все необходимые вещи.
Оптимальное решение для ванной
Не во всех трехкомнатных квартирах имеется большой санузел. Лучшим вариантом будет демонтировать стенку между ванной и туалетом, если санузел у вас раздельный.
В таком случае вы сможете установить в туалете раковину, а это очень удобно и габариты вашей комнаты увеличатся на столько, что вы сможете поставить стиральную машинку и установить даже сушку. Если вы не хотите соединять санузел, то можно использовать еще такой вариант. Перепланировка 3 комнатной квартиры, может быть не много по – другому. Вы можете увеличить размеры вашей ванной комнаты, при помощи коридорчика, который ведет на кухню. Попадать на кухню, вы сможете через гостиную комнату.
Как перепланировать трехкомнатную квартиру в хрущевке?
Перепланировка трехкомнатной хрущевки, совершить намного проще, чем перепланировать квартиру в новострое. Перепланировка будет направлена на кухню и санузел. Чтобы расширить кухню, можно воспользоваться прилегающей комнатой.
Кухню можно сделать большой за счет соседней с ней комнаты. Санузел вы сможете, увеличить за счет прихожей, а вход сделать через комнату, которая прилегает к прихожей. Можно демонтировать стенку между кухней и комнатой, которая находится по соседству, которая теперь стала гостиной, именно так у вас получится очень большое свободное пространство, его можно оборудовать как мини- студию.
Правильная перепланировка трехкомнатной хрущевки, создаст отличные условия для проживания, и вы сможете свободно воплотить все свои мечты в жизнь.
Перепланировка 3 комнатной квартиры. Перепланировка трехкомнатной хрущевки. Куда обратиться за помощью?
Лучше всего работать с одним подрядчиком, который сможет предоставить для вас все услуги в комплексе: проектирование, эскиз, визуализация – это только один из шагов. Компания ООО «Актуальные решения» поможет вам, помимо вышеперечисленных задач, организовать грамотное их воплощение. Фирма осуществляет авторский надзор, ваш дизайн проект спб будет в надежных руках. Подробности можно узнать по телефону +7 (812) 914-913-0 или на официальном сайте.
Планировка хрущевки: варианты 1,2,3 комнаты
Массовое возведение панельных и кирпичных жилых зданий, или хрущевок, с упрощенной планировкой квартир, небольшими комнатушками и низким потолками, до сих пор считается вынужденной мерой в строительстве, направленной на обеспечение послевоенного поколения более-менее сносным жильем.
Хотя на самом деле на то, чтобы массово строить что-либо более удачное в смысле планировки комнат, просто нет ресурсов разработчика, так как дома строились, как на конвейере. За образец были взяты варианты планировки хрущевки на 2 комнаты, и, отталкиваясь от типового жилья из двух раздельных комнат, практически на ходу комбинировались хрущевки на 1, 3 и даже 4 комнаты.
Что представляет собой двухкомнатная хрущевка
За двадцать лет интенсивного строительства использовалось несколько проектов и серий хрущевок, квартиры строились из железобетонных панелей или кирпича, в четырех и пятиэтажном исполнении, с высотой потолков 250 и даже 270 см, но внутренняя планировка помещений придерживалась примерно одной и той же схемы.
Практически все квартиры, за исключением блочных вариантов с тремя комнатами, строились по одним и тем же характеристикам:
- Общая площадь планировки двухкомнатной квартиры в хрущевке составляла от 30 до 46 квадратов, из них 8 м2 отводились для спальной, 4,5 м2 – для кухни, остальное для зала – 14 м2, коридора и вспомогательных помещений;
- Зал в планировке всегда был проходным, то есть, чтобы попасть в наиболее удаленную спальную комнату, приходилось пересекать гостиную или зал;
- Санузел для хрущевки мог быть раздельным с ванной, но всегда располагался в одном блоке с кухней и коридором, таковы особенности планировки водных и канализационных коммуникаций.

В хрущевках любой планировки всегда отсутствовал лифт и вспомогательные помещения для обустройства электрощитовой, запорной водопроводной и газораспределительной арматуры. Все жизненно важные краны и вентили либо перенесены в подвальное помещение, либо находились на фасаде здания.
Важно! Стоит отметить, что качество строительства кирпичных хрущевок было намного выше панельных коробок.
Если здания из силикатного и красного кирпича, по некоторым оценкам, могут простоять до 100 лет, то для панельных домов конструкции из железобетона теряют несущие способности через 40-45 лет эксплуатации. Большинство панельных хрущевок первого проекта находятся в аварийном состоянии из-за ошибок в планировании и недобросовестного обслуживания зданий.
Планировка двухкомнатных хрущевок
На долю хрущёвок в крупных городах приходится примерно 70% жилого фонда. Для районных центров и поселков вклад хрущевок может доходить до 95%. Это связано с тем, что крупные города с середины 70-х не застраивались хрущевками, исключения делались для жилых районов, примыкающих к промышленным зонам.
Для райцентров хрущёвки с вариантами улучшенной планировки комнат строились еще 5-7 лет.
Строительство хрущевок выполнялось по нескольким сериям планировок:
- Первая серия 464, строились с 1960 г. по 1967 г.;
- Проект 335, здания возводились 1963-67 г.;
- Серии 1-434 и1-434С использовались в качестве базовых проектов с 1958 по 1964 г.
Положение стало исправляться только с внедрением улучшенных железобетонных панелей, с 70-х в бетон стали добавлять керамзит, улучшилось качество цемента, увеличили толщину панели, что отчасти снизило остроту проблемы.
Панельные двухкомнатные хрущевки
Базовой в строительстве панельных хрущевок была 335 серия.
Отличительной особенностью планировки квартиры было параллельное расположение комнат. Преимуществом проекта считается относительно большая кухня в 6,2 квадрата и неплохие возможности для перепланировки. Существенным недостатком считается совмещенный санузел. Дверь на балкон выполнялась из гостиной.
Из панелей строились также хрущевки 464 проекта, в котором использовались те же принципы планирования, что и в 335 серии. В проекте планировкой комнат предусмотрена уменьшенная по площади кухня и появление непроходного варианта зала.
Как правило, на одной площадке размещалось четыре квартиры с разным количеством комнат, чаще всего это были варианты с одной однокомнатной, двумя двухкомнатными и одной трехкомнатной квартирой. Квартиры первого этажа отличались отсутствием балконов.
Сегодня наиболее популярная тема вариантов перепланировки панельных двухкомнатных хрущевок касается двух основных моментов – расширение помещения кухни за счет использования коридора, ведущего из прихожей на кухню и примыкающего к ванной и туалету. В этом случае стену между ванной и кухней разбирают, саму ванну переносят на территорию коридора. Такой вариант планировки достаточно прост в реализации, так как стенки, подлежащие сносу и новой планировке, выложены из кирпича или гипсоблока.
В результате кухня может быть увеличена на 1,8 м2.
Кирпичные варианты двухкомнатных хрущевок
К строительству кирпичных пятиэтажек пришли после развертывания интенсивного строительства хрущевок в районных центрах. Строить из силикатного кирпича оказалось проще, чем возить железобетонные панели за 70-80 км от ЖДК, расположенного в пригородах областных центров.
Проект №434С был ориентирован в первую очередь на возможность возведения упрощенной планировки в условиях ограниченного использования кранов и подъёмной техники. Чаще всего это были четырех и пятиэтажные дома. Планировка квартир практически копировала панельные дома. С конца 60-х появились варианты планировки, в которых комнаты располагались продольно. Отчасти это объяснялось необходимостью улучшить соляризацию помещений и уменьшить количество однокомнатных квартир в доме.
Больная тема всех хрущевок – площадь кухни уменьшилась до 5,9 м2, но появились лоджии и увеличилась площадь кладовки.
В остальном кирпичные хрущевки менее удобны для перепланировки. В качестве одного из наиболее распространенных вариантов новой планировки предполагается перенос двери на кухню к внешней стенке здания или даже частичный снос стены. В результате помещение кухни как бы присоединяется к залу, а потребность в узком и неудобном коридоре отпадает.
Особенности перепланировки хрущевок
Основная проблема изменения планировки комнат связывается с необходимостью регистрировать переделки в БТИ. Сделать новые документы достаточно проблемно, поэтому все переделки комнат владельцы стараются не афишировать.
Традиционно переделке в хрущевке подвергаются, прежде всего, кухня и коридор. На схеме приведен наиболее популярный вариант улучшенного планирования комнат хрущевки.
Прежде всего, уменьшена площадь коридора за счет выноса кладовки. Далее в таком варианте планировки сносом кирпичных перегородок комнаты объединяются в одну и соединяются с кухней, без межкомнатных дверей.
Вход в блок туалет-ванная комната теперь из прихожей, что достаточно удобно и практично. Пространство кухни в данном варианте при необходимости занимает до одной четвертой общей площади зала.
Существенно изменена планировка туалета и ванной комнаты. За счет совмещения удается передвинуть ванну под стену, не меняя точки установки унитаза, за которым находится канализационный стояк. От кухни к унитазу идет канализационная труба, поэтому физически невозможно выполнить планировку по-другому.
Заключение
Недостатком подобного варианта планировки комнат является слишком маленькое пространство прихожей, места для обуви и верхней одежды будет достаточно, но находиться в помещении сможет только один человек. Кроме того, бытовая техника, без которой сегодня не обходится ни одна современная кухня, будет серьезной проблемой для тех, кто работает или отдыхает в зале, поэтому проем между залом и кухней придется закрывать раздвижными дверями или стационарной звукоизолирующей ширмой.
Планировка 3 комнатной квартиры: 105 фото самых уникальных идей
Среди современного жилья весьма популярной недвижимостью является 3-комнатная квартира. В зависимости от того, когда было возведено здание и какая у него серия зависит планировка квартир.
Можно сказать, что каждая квартира уникальна, имеющаяся в ней планировка кого-то устраивает, а кого-то нет. Тогда встает вопрос о перепланировке жилой площади. Необходимо детально разобраться в этом вопросе.
Краткое содержимое обзора:
Типичная 3-комнатная планировка
В типовой 3-комнатной квартире жилое пространство распределено различным образом, причем некоторые варианты весьма удобны, другие способны доставить дискомфорт.
Существует вариант с двумя маленькими и одной большой комнатой, с одной комнатой изолированного типа и двумя смежными помещениями. Есть так называемая схема «самолет», когда окна комнат выходят на разные стороны дома.
Оптимальными считаются квартиры с изолированными комнатами. В стандартном типе квартиры с тремя комнатами присутствует кладовое помещение, которое, по мнению многих дизайнеров, можно переоборудовать под гардероб.
Если в семье есть дети, то распределение помещений имеет смысл сделать следующим: одну комнату отвести под детскую, одну оставить для спальни, а большую отдать гостиной. Во многих 3-комнатных квартирах присутствует раздельный санузел, они максимально удалены от лестницы и лифта, площадь составляет от 56 до 80 кв.
Разнообразие планировок
Выделяют несколько типов планировок в соответствии с видами домов: «сталинки», «хрущевки», «брежневки» и современные варианты.
Сталинка
«Сталинки» строились в начале 50-х годов. Планировка в кирпичных домах этого типа демонстрировала едва ли не лучшее жилье в Союзе.
Высокие потолки, достигавшие трех метров, изолированные комнаты с удобным расположением, раздельный санузел – свидетельства продуманности жилого пространства.
В квартирах могли поселиться рядовые граждане и номенклатурные работники, причем планировка помещений для последних отличалась повышенным комфортом. Внутреннее убранство квартир госслужащих могло похвастаться просторным холлом и арочными проемами, в домах имелись помещения для прислуги.
Хрущевка
«Хрущевки» возводились с конца 50-х до середины 80-х годов (с учетом доработок и появления новых модификаций). Ранние версии домов имели не очень удачное расположение комнат, толщина панельных стен не обеспечивала качественной теплоизоляции, потолки были невысокими, совмещенным делался санузел.
Примерно с 1970 года развернулось широкомасштабное строительство 9-этажек из кирпича или панелей. Потолки в новых квартирах располагались на уровне 2,64 м., а внутренние перегородки не несли на себе общую нагрузку. Именно поэтому в таких домах перепланировка 3-комнатной квартиры была обычным явлением.
Брежневка
«Брежневки» считались улучшенным вариантом «хрущевок». Квартиры были средних размеров, встречались раздельные санузлы. Под кухонным окном обустраивалась ниша для хранения продуктов, имелись антресоли. Кухня была больше – от 7 до 9 кв. м.
Современные варианты могут похвастаться улучшенной планировкой, наличием нескольких санузлов. Расположение комнат по схеме «самолет» или группировка так называемым «вагончиком» – часто встречающиеся планировки.
Элитные квартиры представляют собой самое комфортное жилое пространство, спроектированное таким образом, чтобы удовлетворить все потребности человека.
Расположение комнат определяется предпочтениями заказчика, количество санузлов приравнено к количеству комнат, есть отдельные гардеробные, просторные кухни-студии и т.д.
Нюансы планировки трехкомнатной квартиры
Может быть несколько видов планировки. Открытой обладают квартиры-студии. Их можно получить путем переделки, убрав внутренние перегородки и получив большее пространство. Затем его делят на соответствующие зоны, которым присущ собственный дизайн. Закрытая планировка подразумевает изолированность всех комнат, от коридора их будет отделять дверь.
Частично-закрытый тип планировки представляет собой тандем открытого пространства, например, гостиной и закрытого с изолированными комнатами. Их соединяет небольшой по размеру холл.
При смежной планировке выход в коридор имеется у одной из комнат, другие соединены с ней при помощи дверей или оставлен свободным проход. Наконец, сочетание помещений смежного и изолированного типов дают смешанную планировку.
Отдельно стоит обозначить серьезную архитектурную проблему современного строительства. Речь идет о необходимости «вписывать» планировку помещений в иногда чересчур изысканное наружное оформление зданий.
К примеру, на фото планировки 3-комнатных квартир в глаза бросается не оптимальное обустройство жилья, когда тупые или острые углы мешают установке мебели, изогнутые стены создают трудности их обыгрывания в интерьере.
Выбор жилья: как оценить планировку
Решив приобрести 3-комнатную квартиру, необходимо узнать о том, какие существуют критерии оценки приобретаемой площади. Во-первых, стоит сделать акцент на планировке, для чего учесть общую площадь, то, как располагаются комнаты, форму и размеры кухни.
Также важно знать количество окон в квартире. Еще одним важным пунктом будет наличие или отсутствие балкона (лоджии), их количество и размеры.
Необходимо учесть, какие комнаты являются изолированными, какие стены несут нагрузку, какова толщина стеновой панели, железобетонной конструкции или кирпичной кладки и высота потолков.
Кроме того, немаловажным фактором является расстояние от квартиры до лифта (в случае его наличия), лестницы и мусоропровода. Стоит также просчитать соотношение общей и жилой площади, осведомиться насчет инфраструктуры в районе.
Плюсы трехкомнатной квартиры современного типа
Чтобы уяснить существенные отличия планировки квартир в современных монолитных железобетонных домах от планировки в панельном доме, сравним первые с квартирами «хрущевского» типа. Бесспорно, что бурно развивающееся строительство жилья оказало влияние на качество получаемых помещений.
Сегодня проходные комнаты едва ли можно обнаружить в новостройках. Там, где стена комнаты составляет угол дома, делается качественное утепление, препятствующее образованию сырости.
По площади значительно увеличиваются кухня и ванная комната. Высота потолков составляет 3 м. Кроме того, всегда есть свободное пространство, в котором можно создать функциональную зону.
Все вышесказанное говорит об удобстве и рациональной планировке современного жилья. Оно прекрасно подойдет любой семье, в том числе и с детьми.
Когда квартира с искомой планировкой не попадается в поле зрения, не стоит отчаиваться. Нужно самим попытаться проделать все необходимые работы, благо идей современной планировки квартир на просторах сети можно найти массу.
Существуют общепринятые правила планировки. Сначала выбирается помещение и определяется его дальнейшая функция – это может быть спальня, гостиная со спальным местом, сочетание с рабочим кабинетом. После этого оставшееся пространство делиться на зоны, которые как-то обозначаются.
Фото планировки 3 комнатной квартиры
Пожалуйста, сделайте репост;)Перепланировка трехкомнатной квартиры и четырехкомнатной квартиры
Перепланировка трешки или четырёхкомнатной квартиры в основном заключается в увеличении кухни, в увеличении площади комнат или в создании дополнительной комнаты. В любых из перечисленных случаях потребуется получать разрешение от органов самоуправления и делать проект перепланировки трехкомнатной квартиры или четырёхкомнатной. При планировки трешек площадь кухни увеличивают за счёт объединения её с одной из смежных комнат, а площадь комнат увеличивают за счёт демонтажа встроенных шкафов и уменьшения нежилой площади к которой относятся туалет, ванная комната, прихожая, коридор, балкон или лоджия. В основном подвергаются перепланировке трехкомнатные брежневки и хрущёвки так как в них очень маленькие кухни, а комнаты не всегда удобно расположены.
Ниже предоставлены некоторые идеи перепланировки трехкомнатной квартиры и четырёхкомнатной квартиры.
1 вариант
В этой трёхкомнатной квартире была небольшая прихожая и большой коридор. Из прихожей можно было попасть в ванную комнату и туалет, а из коридора были отдельные входы в две спальни, на кухню и смежную с ней комнату. Из кухни имеется выход на балкон.
Перепланировка трехкомнатной квартиры фотоВо время перепланировки панельной трехкомнатной квартиры убрали коридор, и произвели несколько объединений площадей. В прихожей одну стену сместили в сторону ванной комнаты, в итоге в прихожей получилась неглубокая ниша которую можно закрыть раздвижными дверями и использовать как раздевалку. Кухню объединили со смежной комнатой и в итоге получилась большая просторная кухня с обеденной зоной. Но согласно п.11.18 Приложения 1 ППМ 508 нельзя объединять жилую комнату с кухней в которой находится газовая плита и поэтому если будет делаться в 3 х комнатной хрущевке планировка то нужно будет заменить газовую плиту на электрическую.
Если вы всё таки захотите оставить газовую плиту то придётся между кухней и комнатой сделать какую-нибудь плотную перегородку например в виде раздвижных стеклянных дверей. Иногда кухня располагается между комнат при этом в кухне одна из стен со смежной комнатой делается капитальной, а другая как перегородка. Перегородку можно сносить полностью, а в капитальной можно делать только небольшой проём который по ширине не должен быть больше 90 см. Две спальни объединили в одну комнату убрав между ними перегородку. Затем с помощью раздвижных дверей отгородили место под кровать и прикроватную тумбочку, а рядом сделали встроенный шкаф.
2 вариант
Перепланировка 3 х комнатной хрущевки может быть сделана за счёт создания нескольких удобных шкафов.
Перепланировка трехкомнатной хрущевки фотоНапример делая перепланировку трехкомнатной квартиры в хрущевке можно при входе сделать гардеробную которую можно сделать за счёт смещения перегородки с одной из комнат. Перегородка частично смещается в сторону комнаты на глубину шкафа.
Длина у этого шкафа может быть разной в зависимости от длины коридора. Также можно сделать в одной из комнат небольшую комнату-гардероб или просто шкаф.
3 вариант
Раньше в этой трёхкомнатной квартире был большой коридор из которого был вход в ванную комнату и отдельно в каждую из трёх комнат.
Перепланировка 3 комнатной хрущевки фотоПосле перепланировки 3 комнатной квартиры хрущевки коридор объединили с площадью комнаты и разделили её на две комнаты, а вход в ванную сделали из маленькой комнаты. В ванной комнате для удобства установили дополнительный унитаз. В маленькой комнате установили встроенные шкафы и теперь это не просто маленькая комната, а большая гардеробная.
4 вариант
В четырёхкомнатной квартире был большой коридор из которого были отдельные входы на кухню и во все комнаты, а также в туалет и в ванную. После перепланировки четырехкомнатной хрущевки в этой квартире объединили две небольшие смежные комнаты и часть коридора и в результате получили большой просторный зал, обеденную зону, кухню и небольшой коридор.
При такой перепланировке 3х комнатной квартиры сносятся перегородки между смежными комнатами и коридором, поэтому необходимо будет получить разрешение на перепланировку. Обычно в четырёхкомнатных квартирах живёт много людей и поэтому по утрам появляется очередь в туалет и чтобы этого избежать можно поставить дополнительный унитаз в ванную комнату. Если делать дополнительный туалет то должно соблюдаться правило в котором говорится что обязательно вход в один из туалетов должен быть из коридора.
5 вариант
В четырёхкомнатной квартире был большой коридор из которого можно было попасть на кухню, в ванную с туалетом, в небольшие кладовки и в четыре разные комнаты.
Вариант перепланировки трехкомнатной квартирыПосле планировки четырехкомнатной квартиры остался большой коридор но за счёт смещения перегородок между комнатами и установив дополнительные перегородки в результате получили шесть отдельных комнат.
На месте остался туалет с ванной и кладовки. Из каждой комнаты имеется отдельный выход в коридор. Также в результате перепланировки четырехкомнатной квартиры сделали дополнительный туалет и ванную комнату в которые можно попасть только из одной комнаты.
Фото перепланировки трехкомнатной брежневки | Хочу ремонт! Своими руками
Брежневка – недвижимость застройки 70-80 гг. прошлого столетия. За счет дешевизны данных построек и возможностей будущей перепланировки интерес к ним не теряется. Однако, строя планы на приобретение «вторички», следует внимательно узнать конструктивные особенности будущей жилплощади и рассмотреть вопрос о внесении современных изменений в трехкомнатный тип жилья.
Особенности брежневок
Брежневка сменила тесную хрущевскую постройку, содержащую в своем составе еще более неудобные квартиры. Дом с 8 и выше этажами спокойно смог разместить в себе большое количество семей.
В основу этого типа брежневского жилья положено плитное строительство.
Использование железобетонных конструкций позволило существенно сократить сроки возведения зданий, правда, не без потери ряда полезных свойств. Одним из таковых выступает температурный режим в помещениях. В брежневках заметно холоднее, что предопределяет необходимость проведения перепланировки и дополнительных работ по утеплению.
Изредка встречающийся кирпичный вид сооружений значительно выигрывал по тепловым показателям, однако требовал для своего возведения гораздо больших трудовых и материальных ресурсов.
Светлые лестничные клетки панельных и кирпичных брежневок впервые стали содержать мусоропроводы, пассажирские и грузовые лифты. За счет более просторных подъездов размещение этих систем жизнеобеспечения нашло свое размещение на достаточном удаление от жилых площадей. Это позволило снизить шум от их работы до минимума.
Брежневка стала включать в свой состав наряду с классическими одно- и 2-комнатными квартирами, также 3-х- и 4-комнатные варианты. За счет этого многосоставным семьям не пришлось ютиться в тесных двушках, или объединять несколько площадей в одну с перепланировкой помещений.
Конструктивные особенности 3-х комнатной брежневки
3-х комнатный брежневский тип жилья имеет габариты от 49 до 65 кв.м. По размерам трешка примерна равна редко встречающейся 4-х комнатной хрущевке. С приходом более удобной планировки жилых комнат полезная квадратура кухонного пространства осталась на том же небольшом уровне.
Также не подверглись перепланировке, в том числе и в трехкомнатных квартирах, ванная с туалетом. Будучи совмещенными в хрущевках, такие помещения в брежневках разделены не были.
Приблизительные значения полезных квадратов классической 3-х комнатной квартиры составляют:
- кухня – 6 кв.м.;
- гостиная комната – 16 кв.м.;
- детская – 8 кв.м.;
- спальня – 10 кв.м.
Представленные показатели трешки могут видоизменяться в зависимости от типа сооружения.
Безусловным достоинством брежневок стало увеличение высоты потолков. Этот показатель, по сравнению с хрущевками, вырос в таких постройках на 20 см и составил 2,7 м.
Идеи планировок
3-х комнатный тип жилья – раздолье для изменений. Варианты перепланировок брежневок касаются в первую очередь кухонного пространства. Все плюсы этих квартир перекрываются тесными 6-7 кв.м. небольшой кухни.
Приняв решение о внесении изменений в 3-х комнатный брежневский тип планировки жилья, следует с особым вниманием и терпением отнестись к найму специалистов. Это обусловлено наличием перегородок, которые несут основную нагрузку. Неоправданный снос таковых в трешке может поставить под угрозу безопасность не только членов вашей семьи, но и окружающих соседей.
Однако, трехкомнатный вид жилплощади в брежневке позволяет вносить некоторые изменения. Следование советам экспертов и грамотная перепланировка пространства способствуют более рациональному распределению полезных квадратов. Среди наиболее популярных идей по экономии полезной площади следует выделить:
- Снос встроенного шкафа. Путем простых манипуляций стенки этого мебельного гарнитура в брежневской квартире разбираются, освобождая полезные 1-1,5 кв.
м. В дополнение к ним кухню можно увеличить и за счет демонтажа соответствующих перегородок и лишних углов. - Задействование балконного пространства. В большинстве случаев именно в 3-х комнатных квартирах брежневок вход на балкон расположен на кухне. Перепланировка, утепление и отделка этого помещения могут позволить перевести площадь лоджии в полезные квадраты места для приготовления пищи или жилой комнаты, как на фото.
Перепланировка любой жилплощади построек типа «брежневка» – ответственное мероприятие, сопровождающееся составлением документов с изменениями и их согласованием в учетных жилищных органах, и квартира-трешка – не исключение. Поэтому к выбору идеи оформления помещений и изготовлению соответствующего проекта следует отнестись с особым вниманием.
Планировка хрущевки — лучшие дизайнерские решения (75 фото-идей)
Как правило, после приобретения жилья возникает проблема планировки комнат, особенно, если такая жилая площадь является Хрущевкой.
В данном случае квартиры не очень-то отличаются крупногабаритностью, однако распределить имеющееся пространство и создать максимальный уют для жилья в ней все-таки придется.
В данной статье мы рассмотрим, каким образом осуществляется планировка квартир в хрущевках.
Несколько удачных вариантов планировки Хрущевки
Такого типа дома в основном имеют пять этажей и их построение относится к далеким 50-ым годам. Те времена отличались нехваткой жилых помещений.
Поэтому была создана особенная система постройки многоквартирных типовых зданий. В основном для этого использовались специальные готовые блоки, так как это значительно сокращало временные рамки, выделяемые непосредственно на строительство.
Сама квартира имела очень маленькое кухонное помещение (не более 6 квадратных метров), смежные комнаты и общий (совмещенный) санузел.
Еще одной отличительной особенностью является наличие низких потолков.
Однако и такое жилье можно без особого труда преобразовать и сделать очень уютным.
Что касается однокомнатной хрущевки, планировка здесь сразу же исключает создание отдельной спальни. Здесь скорее комната будет выполнять сразу несколько важных и полезных функций. Главное грамотно подойти к разделению пространства на зоны.
Предметы мебели для планировки хрущевки лучше приобретать из класса трансформеров, причем к такой конструкции следует отнести даже двери.
Очень часто люди прибегают к увеличению комнатного пространства за счет коридора. Следует отметить, что имеет очень неплохая возможность застеклить и утеплить балкон, а при желании и возможности даже увеличить его площадь.
Таким образом появляется отличная возможность приобрести место для установки кресла-кровати.
Особенности облагораживания многокомнатных хрущевок
В планировка двухкомнатной хрущевки появляется уникальная возможность создать отдельную спальную комнату, что будет являться своего рода персональной территорией.
Балконную часть также стоит по возможности задействовать, оборудовав на нем небольшой кабинет для работы, причем его площадь также по желанию можно увеличить.
Такая процедура потребует затраты сил и времени, так как предварительно необходимо создать проект по увеличению балкона и поучить согласие на его осуществление в соответствующих инстанциях.
Помимо дополнительного рабочего места можно в итоге поучить еще и отдельный выход на него со стороны кухонной части.
Существует несколько наиболее востребованных вариантов планировки хрущевок:
«Трамвай». В данном случае существует только один способ расстановки мебели (по периметру помещения), что представлено на фото планировки хрущевки, причем наличие балконного пространства будет крайне необходимо.
«Распашонка». Лучше воспользоваться созданием подиума небольшого размера. Который будет включать в себя ящики выдвижного характера.
В данном случае отлично впишутся напольные светильники и шкаф-купе.
При желании можно увеличить размеры стандартного подоконника и тогда он без особого труда сможет заменить традиционный туалетный столик. Это даст возможность разместить все необходимые вещи в пространстве вашей комнаты.
Что касается трехкомнатных апартаментов, то в данном случае одна из комнат будет в обязательном порядке находиться по соседству с кладовкой, это связано все с той же типовой планировкой хрущевки.
Именно она и должна быть спальной, а вот пространство кладовки можно переделать, например, в гардеробную.
Так комната получится менее нагруженной в плане предметов мебели, соответственно, свободного пространства будет намного больше.
Несколько общих рекомендаций
Для удобства создания идеального дизайна планировки хрущевки в однокомнатной квартире рекомендуется установить шкаф, наделенный относительно легкими фасадами из стекла или зеркала.
Это необходимо для того, чтобы он не выглядел слишком уж громоздко. Элементы мебели лучше выбирать легкие.
Стилистическим решением в данном случае окажется минимализм. Зонирование небольшого плана спальни лучше посредством цвета и фактуры.
А вот от чего стоит в обязательном порядке отказаться, так это от потолков различного уровня, созданного из гипсокартона.
Фото идей планировки хрущевки
Международные отношения США, 1958–1960, Том X, Часть 1, Регион Восточной Европы; Советский союз; Кипр
136. Репортаж о Хрущевке. Посетить0
КХВ / Р – 1Вашингтон, без даты.
[Здесь следует трехстраничное резюме договоренностей, маршрута и общий курс хрущевских визит в США.]
Поведение и общее отношение Хрущева
С самого начала поездки Хрущев дал понять, что, хотя он намерен
хвалить советский строй, предсказывать грядущую «мирную» победу
коммунизма во всем мире, а иногда и критикуют Соединенные Штаты
Государства (за торговую дискриминацию, «интервенцию» в Советскую Россию после
революция и т.
д.), он не потерпит никаких вопросов или заявлений, сделанных
в его присутствии, которое он считал «провокационным», т.е. прямо или
косвенно критиковал себя, СССР или коммунизм в целом. Таким образом, при первой встрече
с президентом Эйзенхауэром он
пожаловался на выступление вице-президента Никсона 14 сентября перед American Dental
Association1, в которой заместитель
Президент заявил, что визит Хрущева даст американцам возможность
Хрущев ответил: «Вежливо
но максимально эффективно и четко »по основным вопросам.Точно так же, когда у Хрущева
выступление в Национальном пресс-клубе 16 сентября (о котором, на
на основе предыдущего опыта Микояна и
Козлов, 2 возможно, он
опасения) первый вопрос
спросил его, участвовал ли он в его роли в сталинский период, он резко
напал на мотивы вопрошающего и оставил запрос
без ответа.
3
Хрущев настаивает на своем собственного достоинства и престижа и авторитета СССР, и его постоянное утверждение превосходства коммунистической системы, отчасти мотивировались практическими соображениями. В в то же время, сколько усилий он приложил, и компульсивный (и часто контрпродуктивный) способ, которым он реагировал на все критика — явная, неявная и воображаемая — продемонстрировала, что он обладает в чрезвычайной степени чувство неполноценности, характерное для его соотечественники и их стремление к самоутверждению.
В первой части поездки скопилось раздражающее вещество (раздражители).
повторение критических вопросов, заявления американских спикеров
относительно США, которые он считал
косвенно критикуют СССР,
опровержение ими ранее сделанных критических замечаний в отношении США, крутой
прием, который он получал из толпы на своем пути, охрана
меры, которые препятствовали его общению с общественностью и которые в
любое событие, которое он, вероятно, считал чрезмерным и унизительным), в
сочетание с его собственной растущей усталостью и некоторыми конкретными инцидентами
во время его пребывания в Лос-Анджелесе, привело к угрожающей демонстрации его
гнев на гражданский ужин в Лос-Анджелесе, устроенный ему вечером
19 сентября.
4
Раздражители Лос-Анджелеса включали однострочную приветственную речь в мэра Поулсона (Хрущев отложил подготовленный текст и дал столь же краткий ответ), 5 отсутствие публики с церемонии в аэропорту, отчет местной полиции власти не смогли бы обеспечить его безопасность, если бы он посетил Диснейленд, редкость толпы на его маршрутах по городу (город не был объявлен), довольно недостойная публичная полемика обсуждение со Спайроусом Скурасом на обеде у 20th Century Fox6 (где Хрущев публично жаловался на Диснейленд материи), и безвкусное зрелище, устроенное в его пользу актерским составом «Может может.”
В тот вечер на общественном ужине Хрущев резко выступил против
безобидная речь, произнесенная мэром, оскорбив его, угрожая уйти
домой, угрожая возобновлением и подразумеваемой обострением холодной войны,
хвастовство сериалом СССР
производство межконтинентальных баллистических ракет и т.
д.
Однако даже в этом злобном из своих выступлений Хрущев продолжал хвалить президента.
противопоставляя его реалистичное и мужественное отношение к тем, кто, он
заявили, не смогли понять серьезность альтернатив, стоящих перед
мир (который он по-разному называл войной и миром и разрядкой
и опасное продолжение холодной войны).Мадам Хрущева позже
заявила в частном порядке, что ее муж «полностью потерял самообладание в Лос-Анджелесе.
Анхелес »и объяснил свои действия усталостью.7
Предположительно отрезвляет от плохой прессы, которую его выступление в Лос-Анджелесе
получил и его собственное, вероятно, настойчивое желание не дать его поездке закончиться
в публичном провале, освеженный парой часов сна в начале
поездка из Лос-Анджелеса в Сан-Франциско, и воодушевленные
в целом дружелюбный прием, оказанный ему толпой, собравшейся
на вокзальных остановках по пути Хрущев пришел в себя.
Несмотря на редкие
свидетельство усталости в конце утомительного дня (разделяют другие участники
официальной стороны), он сохранял это хладнокровие во время баланса
поездки. Он делал это, несмотря на то, что время от времени повторялось то, что он
несомненно, считается провокацией (например, мэр Кристофера
заключительное слово, когда Хрущев преподносит молоток на митинге в Сан-Франциско.
ужин 21 сентября).8 Это самообладание вместе
с более дружелюбным общественным приемом на балансе
его маршрут (на который он казался чрезвычайно отзывчивым), несомненно
позволил ему поглотить больше из того, что он видел, чем он в противном случае
Выполнено. Отчасти из-за улучшения атмосферы и отчасти из-за
отражение его усилий дать как можно больше содержания
впечатление, что его прием в США
общественность была теплой (о чем все время заявляла советская пресса), его
признание достижений США стало
более щедрый.
Условия, которые он прописал для американо-советской разрядки, также стали заметно
более умеренные по форме, хотя их содержание не изменилось.
Основные темы хрущевской публики Выписки
Линия, которую пытался провести Хрущев
в своих публичных выступлениях в США, по сути, было то, что он заранее разъяснил в
его статья «О мирном сосуществовании», написанная для октябрьского номера
Иностранных дел (и появляясь в
Номер New York Times от 3 сентября).В этом
статье и в своих последующих выступлениях Хрущев представил «мирное сосуществование» и тотальное
термоядерная война как единственные две альтернативы, с которыми столкнулся мир, называемые
за отказ от войны как средства разрешения споров, утверждал, что мирное сосуществование должно
перерасти в мирное соревнование за удовлетворение потребностей человека в лучшем
возможный путь, но заявлено, что идеологическая борьба коммунизма
и капитализм продолжит свое существование и подтвердит свою веру в
«Неизбежная» победа коммунизма.
Также в его Иностранном
Дела статьи Хрущева утверждали, что набирает силу и
сдерживающая сила советского блока открыла реальную возможность того, что война
могут быть исключены раз и навсегда из жизни общества и названы
необходимо предпринять ряд шагов — все они со стороны Запада — для того, чтобы
возможно мирное сосуществование. В их числе признание
постоянство социалистической системы, где бы она ни существовала сейчас, конец
политическая и экономическая дискриминация против советского блока,
развитие торговли с СССР и
принятие предложений СССР
о Берлине и Германии.
Это основное послание, по сути, было таким же, как и то, что он изложил.
во время поездки вице-президента в Советский Союз (т.
е. коммунизм
был на пути вверх; капитализм и его самый сильный представитель, Соединенные Штаты
Штаты, были непопулярны и постепенно падали, и на смену им пришли
коммунизм; ввиду растущей силы Советского Союза и
блок в целом, и ввиду разрушительного характера современной войны,
Соединенные Штаты покончили бы с собой, если бы попытались сопротивляться
наступление коммунизма посредством войны).
Однако в своих публичных выступлениях в США Хрущев обычно избегал явных
претензии относительно советской военной мощи. Непосредственно сославшись на
тема обеда в Лос-Анджелесе, впоследствии он извинился перед
смягчить эффект его реплики. В общем, придерживался заявлений
относительно экономической и политической силы блока и описал
ужас и безумие войны в общих чертах применительно как к СССР, так и к Соединенным Штатам;
тем не менее, во всех мыслимых случаях он напоминал США о советской доблести в ракетной технике.
упоминая успешный советский «лунный выстрел», произошедший в
накануне его визита.
Наряду с его аргументами о невозможности и безнадежности борясь с растущей силой блока, Хрущев приложил немало усилий, чтобы показать, что СССР занимается укреплением собственной уровня жизни, что коммунизм был основан на гуманных и даже Христианские принципы (телеобращение 27 сентября) 9, и что СССР, таким образом, никому не представлял угрозы (т.е. ненужно и безнадежно сопротивляться этому).
[Стр. 489] Хрущев часто упоминал
что во время его визита общественность США
получая шанс воочию убедиться, что у него не было «рогов». На
много раз он использовал свои очень значительные таланты для юмора и
хамов, чтобы показать себя в человеческом свете.
Важная часть его
Усилием было его решение взять с собой в целом представительную семью.Однако признание себя человеком и симпатичным существом было
очевидно, уравновешенный в его сознании необходимостью проецировать свой образ как
сильный, жизнерадостный, решительный и уверенный лидер великого и растущего
власти и исторически непобедимого мирового движения.
В ходе поездки Хрущев стремился сделать свое послание приемлемым для
Американцы, публично признав желание как президента, так и
народ США за мир с лестными
ссылки, особенно после Лос-Анджелеса, на тот или иной аспект
Американские достижения, включая признание нынешнего лидерства США в определенных областях, особенно в
уровень жизни и производительность сельскохозяйственного труда.
Также вероятно
с той же целью были его заявления, которые он не рисовал.
различие между людьми США
и их правительство, хотя сила этих деклараций и
его признание стремления президента и народа к миру
были уменьшены его заявлениями (особенно в его прессе 27 сентября
конференции и выступление на стадионе «Лужники» по возвращении в
Москва) 10
относительно влиятельных элементов в США
кто сопротивлялся снятию напряжения.Оба в выступлении в Лужниках
а в последующей статье Юрия Жукова в «Правде» 11 вице-президент Никсон был назван главным злодеем.
в произведении, в то время как похвала президента за его стремление к миру была
продолжение. Более того, вероятно, правда, что в публичном розыгрыше нет
различие между народом и правительством Соединенных Штатов,
Хрущев надеялся побудить
Американцы поступили так же и в отношении Советского Союза.
Возможные реакции Хрущева и оценка Поездка
Пытаясь оценить реакцию Хрущева на его поездку, кажется, что есть все основания
предположить, что наш производственный потенциал, высокий уровень жизни,
народная солидарность и т. д. произвела на него впечатление, несмотря на его
предыдущие заявления о том, что он уже знал все о США из фильмов, обширного чтения и т. д.(Разговор Хрущева
указал, что на самом деле он уже много знает о
страны, хотя то, что он знал, было переплетено с полуправдой и
Советские стереотипы.) Помимо того, что его вера в
коммунизм, [стр. 490] сразу
его величайшее политическое достояние и смысл его существования не позволяли ему
признать долгосрочную жизнеспособность нашей системы, уверенные в его укоренившихся
мысли и чувства, вероятно, заставили его отреагировать на многое из того, что он
рассматривался как потакание своим желаниям, расточительству, хаосу и упадку.
Он вполне
вероятно, верит в то, что советские экономисты говорят ему о более высоких темпах экономического роста СССР,
хотя он вполне мог унести с собой убеждение, что,
даже при таких более высоких темпах роста потребовалось бы советское
Союз долго догонял США
в уровне жизни. Кажется маловероятным, что его идеи в армии
поля были изменены каким-либо образом.
В своей оценке нынешнего политического и психологического настроения США, кажется вероятным, что любой впечатление жизненной силы и храбрости он получал от людей, с которыми встречался был, по крайней мере, частично компенсирован тем, что он, без сомнения, считал своим успехом в принуждении нас через угрозу, присущую берлинской ситуации, к направить ему приглашение и договориться о частных беседах с Президент.
Придя сюда, чтобы настоять на том, чтобы СССР статус великой державы, непобедимость блока, неизбежность и добро коммунизма, хрущевка проявил немалое мужество. За возможным исключением его сверхчувствительность к воображаемым пренебрежениям, он никогда не позволял нервозности показывать. Действительно, весь спектакль, по крайней мере, до тех пор, пока не стало очевидно, что он поставил его удовлетворительно, должно быть, это было что-то вроде испытания.Придя сюда, как он это сделал, и говоря то, что он сделал, он не мог очень хорошо признали свою неудачу (как это было продемонстрировано советской прессой умышленное искажение информации о его первом приеме в США Состояние как «теплое»).
Оглядываясь назад, он, вероятно, чувствует, что у него есть все основания для удовлетворения. Он безусловно впечатлил Соединенные Штаты своей силой и решимость; он показал своему народу и другим в мире, что он был признан и уважаем в Соединенных Штатах как неоспоримый лидер великой мировой державы.Более того, он, наверное, чувствует, что у него придало новый импульс переговорам Запада с блоком, и это приверженность Запада к переговорам будет, как правило, препятствовать усилению Усилия Запада в области обороны. По крайней мере временно, он предположительно считает, что он добился частичной разрядки за небольшую плату или бесплатно для блока. Этот, он может надеяться, позволит ему провести встречу на высшем уровне при благоприятных условиях. термины.Даже если на такой встрече не удастся добиться какой-либо серьезной безопасности соглашения СССР рассмотрит выгодно, он мог подумать, что Советский Союз может возникнуть через год или двое из них будут значительно более мощными, чем сегодня. Разрядка линия, кроме того, может быть направлена на улучшение советских возможностей для проникновение в слаборазвитые районы [Страница 491] (хрущевская Адрес ООН12, безусловно, отражает интерес к этой теме) где в наиболее активный кризисно-кризисный период прошлого года с половиной, разработки были далеко не удовлетворительными от советских точка зрения.
Замечания Хрущева относительно невозможность ликвидировать все аспекты холодной войны в одночасье, в помимо защиты советской позиции по некоторым аспектам ее политика, от которой он не хочет отказываться, указывает на то, что он визуализирует частичная разрядка напряженности на некоторую длительность, что, возможно, и желательно при условии надлежащие условия, т.е.е., что разрядка, похоже, работает на то, что СССР считает своим преимуществом. Более того, недавнее заявления в Пекине13 советуя не испытывать капиталистическую систему с применением силы, хотя, без сомнения, частично предназначалась для американских ушей и ограждена, чтобы оставить позицию коммунистов Китая на Тайване хотя бы теоретически нетронутыми, предположительно также отражают реальное желание китайцев сохранить Коммунистов от принятия каких-либо ранних агрессивных действий в масштабах, которые могут вовлекать их в боевые действия с США, или что серьезно поставило бы под угрозу нынешние советские попытки произвести частичную разрядку.
Вероятное влияние поездки на будущее Советский подход к США
В то время как СССР уже заложил основа для обвинения в любых неудачах на пути к «дружеским отношениям». с США »о влиятельных элементах в США, выступающих против ослабления напряженности, насколько Хрущев своей поездкой, вероятно, сделал себя героем в СССР как миротворец в пользу сближения отношения с Западом означают, что ему будет непросто признать неудачу в своих самопровозглашенных усилиях.По крайней мере, это требуют значительных, очевидно существенных доказательств предположительно США враждебное действие или намерение. его восхваление президента Эйзенхауэра как человека мира имеет тенденцию совершить Хрущева хотя бы в это особое внимание к сбалансированности президентского срока, в то время как осуждение вице-президента Никсона (которое может быть распространено на других президентских потенциалов при необходимости) может указать дату окончания в случае необходимости.Это не означает, что усилия США в тем временем способствовать безопасности и стабильности в свободном мире будет разрешено пройти незамеченным, или что СССР не может использовать хотя бы подразумеваемые угрозы в попытке улучшить свое положение. Если СССР считать некоторые действия США угрозой безопасности блока, нет оснований сомневаться в том, что его реакция будет прямой и открытой.Степень, в которой Хрущев привержен своей предполагаемой роли миротворец, однако, указывает, что он будет продолжать какое-то время быть по крайней мере, чтобы изобразить себя так и быть осторожным, чтобы избежать серьезных кризисов за что СССР мог граждане кажутся ответственными.
Линия Хрущева в отношении американо-советских отношений, сочетающая в себе непреклонность изложение советской позиции с выраженным желанием заверить мира и установит американо-советский сближение, представляло собой двусмысленную смесь из нескольких точек зрения Посмотреть.Он был достаточно напористым, чтобы соответствовать традиционным советским традициям. методы ведения переговоров в преддоговорный период, в то же время достаточно обнадеживает, чтобы заинтересовать Запад. Это было достаточно сложно, чтобы предотвратить серьезную оппозицию со стороны доктринерских элементов внутри блок, который выступил бы против любого реального modus vivendi с Западом, но достаточно надежд, чтобы победить Хрущева большая популярность дома среди широких элементов советской население, которое хотело бы реальной разрядки и более быстрого роста уровень жизни.Даже частичная и, вероятно, временная разрядка Линия, предназначенная для производства, носит неоднозначный характер: в большей степени элементов доктрины, это можно представить как тактический ход в улучшить силовое положение СССР и возможности проникновения; тем, кто сомневается, что даже довольно быстро Рост Советской власти позволит безопасно распространять коммунизм. в сочетании с национальной безопасностью это можно представить как логический шаг к реальному снятию напряжения, уменьшающему опасность войны.
Хрущев проявил способности одновременно думать о множестве мыслей, которые, на наш взгляд, приходят противоречивый. Нет оснований предполагать, что он не в равной степени искренне желая обеспечить как мир, так и победу коммунизма. Он также, вероятно, столь же искренен в своем интересе к максимальному увеличению Власть СССР относительно потенциальных врагов, в то же время повышая уровень живя своим народом и блоком в целом, полагая, что последний курс тоже будет способствовать распространению коммунизма.
В свете этих соображений представляется вероятным, что, как указано выше, Хрущев чувствует себя уверенно что он может получить то, что хочет, от конференции на высшем уровне или другого переговоры с Западом по приемлемой, если не минимальной цене. Четный не достигнув приемлемых для СССР соглашений (кроме временной формулы по Берлину), он мог Считаем полезным, при прочих равных условиях, продолжать новое меньше угрожающую позицию на год или два, пока положение СССР в относительной силе не увеличится, что он считает, что обещано его текущими военными программами, иметь по крайней мере начали возникать.В то время, как может верить Хрущев, он мог судить о том, прогрессируют удовлетворительно, с его точки зрения, или его усилия по обучению Запада тому, что он считает реалиями современный мир требует более концентрированного и эффективного «тепла». лечение.»
Миф о ракетном разрыве и его потомство
Грег Тильман
Ошибочные представления общественности в 1959 и 1960 годах о том, что Советский Союз открыл опасное и растущее преимущество перед Соединенными Штатами в развертывании межконтинентальных баллистических ракет (МБР), имело роковые последствия, помимо влияния на чрезвычайно близкие президентские выборы.То, что тогда называли «ракетным разрывом», также помогло установить модели гонки ядерных вооружений, которая сохранялась на протяжении всей холодной войны и после нее.
Для американской общественности ракетный пробел резко увеличился к концу 1950-х годов в результате двух событий 1957 года. Первым из них были успешные летные испытания советской межконтинентальной баллистической ракеты SS-6 в августе и запуск Советского Союза в течение нескольких недель. позже первого в мире искусственного спутника Земли, Спутника, с помощью того же типа ракеты. Оба запуска представляли собой советские технологические достижения, которых еще не было в Соединенных Штатах.Спутник, видимый в ночном небе над Соединенными Штатами, был более драматичным символом советского прогресса, но предшествовавшие ему испытания межконтинентальной баллистической ракеты имели более зловещие и непосредственные последствия для безопасности.
Вторым событием стало секретное завершение в ноябре и вскоре после этого публичное обсуждение порученного президентом обзора ядерной политики США внешним и преимущественно гражданским комитетом под председательством Горация Роуэна Гейтера. В «Докладе Гейтера», как его называли, предупреждалось, что Советский Союз может иметь «значительный» потенциал межконтинентальных баллистических ракет к концу 1959 года, что сделает бомбардировочный флот Стратегического авиационного командования уязвимым для внезапного нападения «в период снижения мировой напряженности».[1] Несмотря на то, что он засекречен, некоторые выводы отчета, в том числе алармистский взгляд на возможности советских межконтинентальных баллистических ракет, просочились в прессу.
Шок от поражения в космосе сверхдержавы-соперника Соединенных Штатов и предсказание независимой голубой ленточной комиссии будущих стратегических достижений Советского Союза подготовили почву для появления ракетного разрыва. Распространялось чувство тревоги, вместе с рассказом о том, что администрация Эйзенхауэра успокоилась перед лицом острой военной угрозы.Под влиянием сочетания неадекватной информации и партийных политических мотивов, политики-демократы культивировали представление о том, что стареющий действующий президент спал у переключателя и что нужна новая команда, чтобы укрепить правительство и восстановить ядерное превосходство США.
В каком-то смысле выводы Доклада Гейтера и совместные сенатские слушания по ракетно-космической деятельности в январе 1959 г. просто привели к необходимой и запоздалой корректировке психики США, поскольку наступила новая и неприятная реальность ядерной эры. становятся глубоко уязвимыми для нападения извне.Однако пресса и политики за пределами Белого дома приложили мало усилий, чтобы обсудить основные причины или представить доклад в перспективе. Характеризация прессы была даже менее сдержанной, чем язык самого отчета. Например, The Washington Post предоставила своим влиятельным читателям следующее описание содержания отчета: «[Отчет] изображает нацию, устрашающуюся движением к статусу второсортной державы. Это показывает Америку, подвергающуюся почти непосредственной угрозе со стороны изощренного ракетами Советского Союза.Он считает, что долгосрочные перспективы Америки представляют собой катастрофическую опасность перед лицом взлетающей советской военной мощи »[2]
.Hyping Sputnik и Gaither Report в значительной степени соответствовали политическим интересам кандидатов от демократов на пост президента в 1960 году. Судя по тому, что сейчас известно о количестве ракет, сенатор Джон Ф. Кеннеди (штат Массачусетс) постоянно неверно характеризовал стратегическую тенденцию. линий. Например, во время выступления в октябре 1960 года на канале NBC Meet the Press кандидат от Демократической партии сказал: «Советский Союз совершил великий прорыв в космосе и ракетах, и, следовательно, они будут впереди нас в этих самых решающее оружие войны в начале 1960-х.”[3]
В других случаях Кеннеди мог получить преимущество, просто описав новую реальность объективно из-за ее неприятного шокового значения для публики США, которая только начинала осознавать все последствия жизни в ядерный век. Таким образом, он мог без преувеличений сказать в своем выступлении в сенате от 29 февраля 1960 года: «Впервые после войны 1812 года иностранные вражеские силы потенциально стали прямой и безошибочной угрозой континентальным Соединенным Штатам, нашим домам и другим странам. нашим людям.”[4]
Ошибка в аргументе Кеннеди заключалась не столько в неточной характеристике советских номеров ракет, поскольку разведывательное сообщество предоставило ему оценки, которые позже были пересмотрены в сторону уменьшения на основе последующего сбора и анализа разведданных. Более серьезный недостаток заключался в том, что он подразумевал, что новая администрация каким-то образом может изменить фундаментальную реальность ядерной уязвимости США, что было не так. Более того, его внимание к простым параллельным численным сравнениям было неуместным; более важный вопрос заключался в том, действительно ли U.Способность С. угрожать разрушительным ядерным возмездием действительно оказалась под угрозой.
Слушания в Конгрессе предоставили идеальную платформу для развития общей темы о том, что Соединенные Штаты отстают в ракетной гонке и что численное превосходство в ядерных ракетах изменит правила игры. Во время слушаний в январе 1959 года сенатор Стюарт Симингтон (демократия), который также должен был быть кандидатом на президентских выборах от Демократической партии в следующем году, набросился на заявленное нежелание министра обороны Нила МакЭлроя «попытаться сопоставить советские ракеты с ракетами. »:« Тогда, насколько я понимаю, ваша позиция состоит в том, что мы добровольно передаем русским производственное превосходство в области ракетных межконтинентальных баллистических ракет, потому что мы считаем, что наша способность наносить ответный удар другим оружием достаточна, чтобы дать им это преимущество, несмотря на большой ущерб, который мы знаем, что пострадали бы, если бы они спровоцировали нападение? »[5]
прогнозов ЦРУ о количестве советских межконтинентальных баллистических ракет не соответствовали первоначальным оценкам в конце 1957 года, когда к 1960 году было 100.К началу 1960 года ЦРУ прогнозировало 36 к концу года, исходя из «упорядоченного» уровня производства, которое к середине 1961 года достигнет 100. Оценка разведки ВВС на 1960 год, которая составляла 500 в конце 1957 года, оставалась выше, чем у ЦРУ на протяжении всего этого периода [6]. Первые советские межконтинентальные баллистические ракеты фактически пошли на «боевое дежурство» в январе 1960 г. [7], и только две из них были развернуты к концу года [8]. Первая межконтинентальная баллистическая ракета США, Atlas D, достигла боевой готовности в сентябре 1959 года [9].
Вскоре после того, как администрация Кеннеди пришла к власти, ракетный пробел официально начал исчезать.В феврале 1961 года в справочном материале для прессы, посвященном оборонным программам США, министр обороны Роберт Макнамара признал, что «не было никаких признаков того, что Советский Союз попытался построить межконтинентальные баллистические ракеты», и пришел к выводу, что «на сегодняшний день ракетного пробела нет». В 1961 году было ясно и официально признано, что Соединенные Штаты, а не Советский Союз, лидируют по межконтинентальным баллистическим ракетам, а также по большинству других категорий ядерного оружия.
В настоящее время точно установлено, что количество развернутых американских межконтинентальных баллистических ракет никогда не было меньше количества развернутых советских межконтинентальных баллистических ракет в период предполагаемого ракетного разрыва.Вместо этого именно США первыми стали лидерами в области межконтинентальных баллистических ракет и сохраняли его до 1968 года [11].
Невозможно знать, насколько более точная оценка стратегического баланса США в 1960 году изменила бы историю. Однако, оглядываясь назад на полвека, стоит задуматься о факторах, способствующих этой грандиозной ошибке, и о том, как общественность может быть начеку, чтобы избежать серьезной инфляции угроз в будущем.
Возможное против вероятного
Во время дебатов о ракетном разрыве, как и во многих последующих дискуссиях об угрозах, возникла путаница в отношении сравниваемых чисел.По большей части неправильное восприятие ракетного разрыва выросло из сравнения «яблок и апельсинов». Разведывательное сообщество прогнозировало, сколько ракет Советы могут развернуть в будущем, а не сколько они, вероятно, развернут. Это число было лишь приблизительным, менее определенным, чем количество, запланированное для вооруженных сил США за тот же период времени. Более того, прогноз для советских войск представлял собой наихудшую оценку.
Только в январе 1960 года Министерство обороны ввело в свои оценки понятие вероятного, а не возможного исхода.На слушаниях в Комитете по ассигнованиям палаты представителей министр обороны Томас Гейтс подчеркнул изменение: «До сих пор мы давали вам данные разведки, которые касались теоретических возможностей Советского Союза. Это первый раз, когда у нас есть оценка разведки, которая гласит: «Это то, что Советский Союз, вероятно, сделает». [12] Тем не менее, прогноз растущего потенциального разрыва на начало 1960-х годов описывал обстоятельства, при которых все советские ракеты производственные ресурсы будут сосредоточены на максимальном увеличении количества развернутых межконтинентальных баллистических ракет.Как оказалось, Москва переключила свое внимание на разработку нового типа межконтинентальных баллистических ракет SS-7, что привело к более медленному росту числа межконтинентальных баллистических ракет. Он также отвел значительные ресурсы от межконтинентальных баллистических ракет на производство баллистических ракет средней дальности SS-4 и SS-5. Эти ракеты меньшей дальности не могли достичь Соединенных Штатов, когда они базировались в Советском Союзе. В самом деле, позднее советское решение о тайном размещении SS-4 на Кубе было принято частично для того, чтобы исправить общий стратегический дисбаланс, который Москва точно воспринимала, когда к власти пришла администрация Кеннеди.
Следующие десятилетия холодной войны были отмечены многими примерами действий США, основанных на худшей интерпретации будущего развертывания советских войск. Каким бы благоразумным ни было включение таких оценок в усилия по стратегическому планированию исполнительной власти, они регулярно интерпретировались наблюдателями Конгресса и общественностью в целом как предсказания того, что могло произойти. На протяжении десятилетий 1970-х и 1980-х годов Соединенные Штаты переоценивали возможности советских систем противоракетной обороны (ПРО).Опасения 1960-х годов, что стратегическая система ПРО, защищающая Москву, является предвестником общенациональной сети, оказались необоснованными. Описание советского прогресса в разработке экзотических видов оружия направленной энергии в эпоху Рейгана оказалось сильно преувеличенным [13].
Ядовитое воздействие анализа наихудшего случая продолжалось и в эпоху после холодной войны. В отчете комиссии Рамсфелда за 1998 год об угрозе со стороны иностранных баллистических ракет делается вывод о том, что несколько развивающихся ракетных государств могут разработать и развернуть межконтинентальные баллистические ракеты в течение пяти лет.Оценка национальной разведки (NIE) 1999 года по угрозе баллистических ракет была менее паникерской, чем отчет Рамсфелда, и включала в себя «наиболее вероятные», а также «возможные» прогнозы, но все же в ней отводилось место худшему случаю, о чем свидетельствует первый две пули отдела Ирана разведки:
• «Иран может провести испытания межконтинентальной баллистической ракеты, которая сможет доставить полезную нагрузку в несколько сотен килограммов во многие районы Соединенных Штатов во второй половине следующего десятилетия с использованием российских технологий и помощи.”
• «Иран может преследовать МБР типа Taepo Dong и может испытать МБР типа Taepo Dong-1 или Taepo Dong-2, возможно, с помощью Северной Кореи, в ближайшие несколько лет» [14]
Иран не испытывал ни одну из систем Taepo Dong «в следующие несколько лет» и до сих пор не испытывал межконтинентальную баллистическую ракету, хотя «вторая половина следующего десятилетия» уже наступила. Более того, через 13 лет после громкого призыва Комиссии Рамсфельда ни одно другое государство не приобрело межконтинентальные баллистические ракеты. Каждое из этих предсказаний сыграло роль в оправдании массового поражения U.С. Стратегическая противоракетная оборона и выход США из Договора по ПРО. Финансовые затраты намного превысили 100 миллиардов долларов, а альтернативные издержки сокращения стратегических наступательных вооружений были значительными [15].
Смещение источника
Когда оценки предоставляют диапазон возможностей — вполне разумных с аналитической точки зрения — самые высокие (или самые низкие) числа в диапазоне могут быть выделены по политическим причинам. При вскрытии мифа о ракетном разрыве отмечается, что прогнозы ВВС относительно будущих уровней советских межконтинентальных баллистических ракет были неизменно выше, чем у других служб, и что Кеннеди «предпочел верить цифрам ВВС, а не информации, которую он получил от официальных лиц администрации Эйзенхауэра, как в открытом виде, так и в закрытые слушания.[16] Трудно прийти к окончательным выводам о мотивах ВВС или кандидатов в президенты от Демократической партии, которые полагались на оценки ВВС. Тем не менее, ВВС извлекали институциональные выгоды из завышенных оценок советской ракетной угрозы, а демократы извлекали политическую выгоду, полагаясь на них. Синергизм между этими двумя людьми подпитывал общественное восприятие разрыва, которое оказалось ложным.
Характер процесса оценки разведывательных данных заключается в том, что лица, выносящие экспертные заключения, часто являются коммерческими или бюрократическими структурами, которые извлекают выгоду из наиболее тревожных прогнозов, принимаемых как реальность.Чтобы получить «лучшие» технические оценки зарубежных возможностей противоракетной обороны, правительство часто нанимает фирмы, которые могли бы быть получателями контрактов на разработку наступательных контрмер или на создание параллельной программы американских оборонительных перехватчиков. Техническая оценка возможностей иностранных подводных лодок логически могла бы проводиться производителями гидролокаторов или торпед США. Это не означает, что эти прогнозы должны быть отклонены или что имеются хорошие альтернативные источники, но это означает, что необходимо учитывать предвзятость источника.
Дополнительное смещение источника в случае ракетного бреши и во многих последующих оценках угроз настолько очевидно, что его часто упускают из виду. У потенциальных врагов обычно есть стимул преувеличивать свои возможности. После запуска спутника советский лидер Никита Хрущев хвастался, что заводы его страны «производят ракеты, как сосиски», и сильно преувеличили размер и оперативные возможности советских межконтинентальных баллистических ракет [17]. Когда его сын спросил, почему он это делает, он объяснил, что «количество ракет, которые у нас были, не так важно.… Важным было то, что американцы верили в нашу силу ». [18] То, что потенциальные противники США от Ирака Саддама Хусейна до Ирана Али Хаменеи хотят преувеличить свои возможности, является логичным, но США предвзято относятся к заявлениям таких правительств, чтобы предположить, что они маскируют скрытые возможности.
Непонимание чисел
Президент Дуайт Эйзенхауэр заказал Отчет о Гейтере, потому что хотел получить второе мнение о вариантах улучшения раннего предупреждения о советском нападении и, в случае такого нападения, снижения уязвимости гражданского населения.Эйзенхауэр и два последовательных министра обороны во второй половине его второго срока продемонстрировали более сложное и тонкое понимание ядерного баланса террора, чем многие из его критиков, которые подняли тревогу по поводу надвигающегося ракетного бреши. Разведывательные полеты U-2 над Россией собирали информацию, которая опровергала некоторые из самых худших прогнозов. Программы США по созданию и развертыванию межконтинентальных баллистических ракет и баллистических ракет, запускаемых с подводных лодок, шли полным ходом. Однако президенту и другим высокопоставленным должностным лицам не удалось эффективно донести до общественности стратегические реалии ядерной эры.«Их попытки отвергнуть запуск спутника как« научную безделушку », призванную успокоить, во многих кругах были восприняты как показатель самодовольства президента (или того хуже)» [19]. Нежелание Эйзенхауэра разглашать информацию о U-2 » Создавалось впечатление, что его заверения ни на чем не основывались »[20]. Когда министры обороны Эйзенхауэра пытались объяснить Конгрессу, что одно только сравнение« ракета вместо ракеты »создает обманчивое впечатление о балансе между США и Советским Союзом, они были истолкованы как Признания, что U.Администрация С. «уступила противнику решающее стратегическое преимущество» [21].
Тенденция политиков упрощать сложную логику ядерных вопросов в партизанских целях не закончилась с исчезновением первоначального ракетного бреши. В то самое время, когда лидерство США в области стратегических боеголовок резко увеличивалось в результате повышения точности и оснащения межконтинентальных баллистических ракет несколькими средствами для самостоятельного наведения на цель, критики контроля над вооружениями производили противоположное впечатление.Сенатор Генри «Совок» Джексон (демократ от Вашингтона), один из лидеров его партии по вопросам обороны, сравнил размер американских и российских межконтинентальных баллистических ракет с линейными игроками двух конкурирующих футбольных команд, подразумевая, что размер ракет был единственным важным показателем возможности. Поскольку переговоры об ограничении стратегических вооружений (ОСВ) привели к прогрессу в ограничении роста стратегических арсеналов, противники ОСВ эффективно использовали настольные модели межконтинентальных баллистических ракет, на которых бок о бок отображались американские (белые) ракеты и гораздо более крупные советские (черные) ракеты.Не столь тонкое сообщение заключалось в том, что ОСВ не смогла предотвратить возникновение нового зловещего ракетного бреши. Воздействие было интуитивным; Интеллектуальные объяснения важности высокой точности и количества боеголовок США, а также неуязвимости американских подводных лодок с баллистическими ракетами часто оставались без внимания.
Заключение
Заманчиво отвергнуть ракетную брешь как причудливый артефакт более раннего времени, интересный исторический пример негативного воздействия избирательной политики на оценку угроз.Однако это также следует признать как явление, которое неоднократно возникало с тех пор, как 50 лет назад быстро испарилась «катастрофическая опасность» первого ракетного бреши. В течение трех оставшихся десятилетий холодной войны Соединенные Штаты часто стремились закрыть стратегические бреши, которые, как считалось, открывал Советский Союз, но гораздо позже обнаруживали, что Москва изо всех сил пыталась просто догнать технологический прогресс и превосходство. ресурсы США. Возникновение и падение мифа о ракетном бреши — это поучительная история, которая должна и впредь подпитывать усилия по достижению более реалистичных и трезвых оценок угроз, с которыми сегодня сталкиваются.
Грег Тильманн — старший научный сотрудник Ассоциации по контролю над вооружениями, где он руководит проектом реалистичной оценки угроз и реагирования. Ранее он работал старшим профессиональным сотрудником Специального комитета Сената по разведке и проработал 25 лет на дипломатической службе США.
КОНЕЦ
1. Управление мобилизации обороны, Исполнительная канцелярия президента, «Сдерживание и выживание в ядерный век», 7 ноября 1957 г. Высоко оцененный анализ отчета см. Дэвид Л.Снид, Комитет Гейтера, Эйзенхауэр и холодная война (Колумбус, Огайо: издательство Ohio State University Press, 1999).
2. Чалмерс Робертс, «Огромные затраты на оружие жизненно необходимы для выживания», The Washington Post , 20 декабря 1957 г., с. 1.
3. Подкомитет Сената по коммерческим коммуникациям, Свобода коммуникаций, 87-й Конгресс, 1-е заседание, 1961 г., Южная Республика 994, pt. 3, стр. 250.
4. Джон Кеннеди, Протокол Конгресса , 86-й Конгресс, 2-я сессия.(29 февраля 1960 г.): S3801.
5. Подкомитет Сената по расследованию готовности вооруженных сил и Комитет Сената по авиационным и космическим наукам, Совместные слушания по ракетно-космической деятельности , 86-й Конгресс, 1-е заседание, 1959 г., с. 53.
6. Джеффри Т. Ричельсон, «США. Разведка и советские звездные войны », Бюллетень ученых-атомщиков , май 1986 г., стр. 12-13.
7. Павел Подвиг, изд., Российские стратегические силы (Кембридж, Массачусетс: MIT Press, 2001), с.182.
8. Роберт С. Норрис и Томас Б. Кокран, «Справочник по ядерному оружию: стратегические наступательные ядерные силы США-СССР / России 1945–1996», январь 1997 г., с. 18.
9. Норман Полмар и Роберт С. Норрис, Ядерный арсенал США: история оружия и систем доставки с 1945 г. (Аннаполис, Мэриленд: Naval Institute Press, 2009), стр. 166.
10. Десмонд Болл, Политика и уровни вооруженных сил: Стратегическая ракетная программа администрации Кеннеди (Беркли, Калифорния: University of California Press, 1980) (цитируется статьи в The Wall Street Journal от 9 февраля 1961 года и The Washington Сообщение от 7 февраля 1961 г.).
11. Норрис и Кокран, «Датабук по ядерному оружию», с. 18.
12. Эдгар М. Боттом, Ракетный разрыв: исследование формирования военной и политической политики (Крэнбери, штат Нью-Джерси: Associated University Press, 1971), с. 120 (цитата из показаний министра обороны Томаса Гейтса в Комитете по ассигнованиям Палаты представителей в январе 1960 г.).
13. Дэвид Э. Хоффман, Мертвая рука: нераскрытая история гонки вооружений холодной войны и ее опасное наследие (Нью-Йорк: Doubleday, 2009), с.294.
14. Национальный совет по разведке, «Оценка национальной разведки: разработки иностранных ракет и угроза баллистических ракет для Соединенных Штатов до 2015 года», сентябрь 1999 г. (несекретное резюме) (курсив в оригинале).
15. См. Грег Тильман, «Стратегическая противоракетная оборона: угроза будущему сокращению стратегических вооружений», ACA Threat Assessment Brief , 26 января 2011 г., стр. 3-4, www.armscontrol.org/system/files/TAB_StrategicMissileDefense_ThreattoFutureNuclearArmsReduction_2 .pdf.
16. Дэниел Хорнер, «Кеннеди и ракетный разрыв» (статья, Флетчерская школа права и дипломатии, Медфорд, Массачусетс, 29 мая 1987 г.), с. 33.
17. Ричард Нед Лебоу, «Хрущев блефовал на Кубе?» Бюллетень ученых-атомщиков , апрель 1988 г., стр. 41-42.
18. Сергей Н. Хрущев, Никита Хрущев и создание сверхдержавы (University Park, PA: PennsylvaniaStateUniversity Press, 2000), с. 315.
19. Хорнер, «Кеннеди и ракетный разрыв», с.2.
20. Там же, с. 3.
21. Там же.
типичные отличия, особенности и пустые опции
Пятиэтажные панельные дома серии 1-464
Многоквартирные 4-5-этажные жилые дома серии типовых проектов 1-464 — самые распространенные полукровные дома первого поколения. Решением домов рассматриваемой серии является конструктивная система с поперечными стенками.
Основным несущим ядром здания являются поперечные железобетонные стены, расположенные с шагом 3.2 и 2,6 м, благодаря чему дома этого типа получили название домов с «узким» шагом поперечных несущих стен. В их основе лежат железобетонные плиты перекрытия «по комнате». В их основе также лежат наружные и внутренние продольные стены, которые воспринимают часть вертикальной нагрузки, обеспечивая при этом продольную жесткость здания.
Плиты перекрытия, уложенные с шагом 3,2м, спроектированы и эксплуатируются опорными по контуру. Поскольку все разделяющие комнаты внутренние стены нагружены перекрывающимися и перекрывающими перекрытиями, сдвинуть эти стены и тем самым изменить ширину помещения невозможно.По этой же причине устраняется снятие наружных стен на шаге 3,2м без обеспечения проема перекрытия на короткой внешней стене.
Наружные стены выполняются из трехслойных панелей, состоящих из двух железобетонных оболочек и слоя утеплителя между ними, или однослойных панелей (из легкого бетона). Внутренние несущие стены толщиной 12 см и плиты перекрытий толщиной 10 см представляют собой железобетонные перекрытия сплошного сечения. Кровля совмещается с рулонной мягкой кровлей или чердаком с кровлей из асбестоцемента.
При перепланировке домов серии 1-464 возникает необходимость в новом или расширении имеющихся проемов в поперечных стенах. Для ограниченных лимитов это возможно, но требует подтверждения расчетами.
При модернизации здания плиты межэтажных перекрытий не подлежат демонтажу. Однако при надстройке перекрытия зданий над существующим пятым этажом возможен частичный демонтаж. Устройство в их новых проемах возможно, но при больших размерах таких проемов может потребоваться перекрытие.
В рассматриваемой серии балконы ставятся с шагом 3,2м. Балконные железобетонные плиты толщиной 10см и шириной 90см монтируются по двум схемам. В начальный период строительства они опирались на внешнюю стену и держались в проекте двумя металлическими тягами, которые, проходя через стык между внешними стенами, крепились к торцу внутренней стеновой панели. В более поздних проектах от такого решения отказались, и, рассчитав балконную плиту как консоль, подведенную к внешней стене, соединили ее с перекрытием плиты с помощью сварных закладных элементов.
Пятиэтажные панельные дома серии 1-468
Типовые проекты жилых домов серии 1-468 изначально разрабатывались в институте ГРУТРОПРОЕКТ, с 1961 года — в ЦНИИеплиге.
Несущие повседневные дома этой серии представляют собой поперечные несущие стены, расположенные с шагом 3 и 6 м, за счет чего, в отличие от домов серии 1-464, дома данной конструктивной системы получили название домов с «смешанный» шаг поперечных несущих стен.
Самый распространенный представитель домов этой серии — пятиэтажный четырехсекционный жилой дом. В нем наружные стеновые панели выполнены из ячеистого бетона автоклавного твердения или из легкого бетона, а многоконсольные железобетонные перекрытия — на поперечно несущих железобетонных стенах. Продольные стены здания — самонесущие. Крыши таких домов строились в двух вариантах: совмещенная с рулонным покрытием и мансардная ступень с кровлей из волнистых асбестоцементных листов.
Основным преимуществом рассматриваемых домов является то, что панели перекрытия не опираются на продольные стены здания. Поэтому эти стены, помимо отдельных участков внутренней стены, примыкающих к лестничным клеткам и обеспечивающих продольную устойчивость здания, можно демонтировать в отдельных местах. Это обстоятельство открывает при модернизации таких зданий широкие возможности по устранению недостатков в планировке существующих квартир за счет расширения в здания дополнительных объемов.Устройство новых и расширение существующих проемов в несущих поперечных стенах возможно только при подтверждении расчета и усилении «контуров» проемов.
Пятиэтажные панельные дома серии 1-335
Пятиэтажные жилые дома серии типовых проектов 1-335 являются представителями каркасно-панельной конструкционной системы. Типовые проекты этой серии изначально разрабатывались авторским коллективом Ленинградского конструкторского бюро, а затем были продолжены в Институте ЛензиЭЭП.
Расчетная схема дома представляет собой так называемый «неполный» каркас, который состоит из одного ряда железобетонных колонн, расположенных по средней продольной оси здания с шагом 3,2 и 2,6 м, и железобетонных реглелей, расположенных поперек сооружение и опирается с одной стороны на железобетонные колонны, а с другой стороны, на металлические опорные столы, заделанные в корпус несущей панели наружных стеновых панелей. Плиты железобетонные внахлест размером «по комнате», рассчитанные на опору по двум длинным сторонам.Колонны между собой соединены между собой прогонами, что обеспечивает продольную жесткость здания.
В домах рассматриваемой системы несущие наружные стены применялись в основном слоистыми. Они имеют внешний слой в виде железобетонной ребристой «оболочки» и внутренний (утепленный) из пенобетона толщиной 26см, поверхность которого со стороны помещения оштукатурена. В этих домах нет внутренних несущих стен, за исключением диафрагм твердости, которые служат стенами пересечения ячеек лестницы.
При одинаковых размерах и шагах домов разных серий в домах каркасно-панельной системы принцип «Свободной планировки» может быть реализован полностью. Наличие такелажников под плитами полов можно считать определенным недостатком, препятствующим традиционному формированию интерьера жилых помещений.
Модификацией этой конструктивной системы стало введение в нее двухъярусных колонн — в наружных стенах здания для перестройки ригелей.Такие дома называли «домами с полным каркасом». В них внешние стены являются самонесущими и могут быть демонтированы при реконструкции.
Пятиэтажные кирпичные дома 1-447 серии
В серию 1-447 входят типовые проекты 4-5 этажных кирпичных жилых домов с тремя продольными несущими стенами. Несущие жилые дома рассматриваемой серии представляют собой три продольные несущие стены и поперечные кирпичные стены — внешнюю торцевую и внутреннюю, между которыми расположены лестничные клетки.Поперечные кирпичные стены выполняют роль диафрагм твердости. Все остальные стенки (внутриквартальные и межкардные) — нонсенс.
Полы выполнены в виде железобетонных многослойных плит, открытых короткими сторонами на продольных кирпичных стенах. Наиболее нагружена средняя стена, на которую с двух сторон опираются панели перекрытия. В наружных продольных стенках проемы можно увеличить только за счет исключения подсхемной части при сохранении имеющейся простоты. Перемычки над окнами тоже следует сохранить.В торцевых стенах здания при реконструкции возможно устройство открывания.
Возможен демонтаж перегородок серии 1-447
С 1957 года в СССР началось строительство домов нового типа. Произошло это после принятия закона, предусматривающего устранение излишеств в архитектуре и дизайне зданий. Такие дома получили в народе название «хрущевки» (от имени Н.С. Хрущева), а также «хрущевки» (из-за непропорциональной и неудобной планировки комнат, узких пролетов площадок и коридоров, тонких стен, а значит кошмарная шумоизоляция).В этой статье мы расскажем, какой была планировка квартир в хрущевках, рассмотрим типовые серии этих домов, попробуем определить основные минусы и преимущества этих построек.
Типовая серия Хрущевок
Рассмотрим основные характеристики квартир, кроме того, определим особенности всех серий этих домов, построенных за 27 лет. Следует отметить, что хрущевки изначально задумывались как временное жилье. Тогда срок эксплуатации дома составлял 25-50 лет.Но сегодня в таких домах живут люди. К расходу построек можно отнести ужасную теплоизоляцию и шумоизоляцию (зимой холодно, а летом в квартире слишком жарко). Планировка комнат в хрущевке и подъезда тоже не всегда удачная: небольшая кухня, узкие коридоры, не очень часто лифт и вывоз мусора.
К преимуществам этих домов можно отнести относительно невысокую стоимость квартир. Основными преимуществами этих домов также являются классифицированная инфраструктура вокруг них.В основном рядом с хрущевками расположены школы, детские сады, магазины и прекрасная транспортная развязка. Если денег на покупку квартиры мало, то хрущевка — не самое худшее. Сегодня такие дома в городах нашей страны подлежат сносу, а значит их владельцы получают новую квартиру или перепланировку и реконструкцию.
Серия 1-464.
Сразу стоит сказать, что эта одна из самых популярных серий хрущевок в СССР стала именно такой.Дома построены в 1960-1967 гг. Это дом из панелей в пять этажей, иногда встречаются также 3-х и 4-х этажные постройки. В каждой квартире есть балконы и дополнительные кладовые. При этом лифтов здесь не предусмотрено, и жильцам дома приходится спускаться и подниматься по ступеням, что очень сложно людям в возрасте, а также семьям с детьми. В данной хрущевке варианты планировки предусмотрены однотипные — в санузлах совмещены, в подъезде нет общего мусоропровода, а на участке — 4 квартиры.2,5 м — высота потолков, площадь кухни 5,8 м². Это были квартиры 1-3-х комнатной планировки.
Серия 1-335.
В домах этой серии территория построена в 1963-1967 гг. Это тоже были панельные дома. Такая планировка хрущевки (фото представлено в этой статье) предполагает высоту потолков 2,54 м, в каждой квартире — балкон, совмещенный санузел, а также отсутствие мусоропровода и лифта. Площадь кухни немного больше, чем в предыдущей серии — 6.2 м². На участке также 4 квартиры — 1-3-комнатные. Помимо балконов, в квартирах есть дополнительные встроенные шкафы и кладовые.
Серия 1-434
Эта серия выпускалась в 1958-1964 годах. Планировка хрущевки при этом была несколько видоизменена в разные годы развития. Например, в 1958 домах в 1-комнатных квартирах жилая площадь составляла 18,6 м², а через год она упала до 18,2 м², еще через год комната была 17,7 м².Причем во всех типах этих квартир площадь жилых комнат варьировалась в сторону увеличения и уменьшения. При этом площадь кухни была постоянной — 5,8 м², так как фактически высота потолков везде была равной 2,5 м. Дома кирпичные, санузлы совмещены, в каждой квартире есть балкон, встроенные шкафы и кладовая.
Серия 1-467
Это последняя серия, построенная в 1959-1969 гг. Дома тоже из блоков с высотой потолка 2,5 м, но планировка кухни в хрущевке получилась удачнее — с увеличенной площадью 6.6-7,7 м². В каждой квартире были балконы (помимо 1-го этажа). В ранних вариантах домов ванные комнаты — раздельные, затем — совмещенные, мусоропровод тоже отсутствует. К достоинствам квартир этой серии можно отнести возможность перепланировки, а к минусам — смежные комнаты в квартирах.
Правила перепланировки двухкомнатной хрущевки
В том случае, если планировка хрущевки вас не устраивает, и вы хотели бы ее поменять, нужно знать, какие стены в квартире несущие, а они Нельзя касаться актуальных законодательств: они делают дверные проемы, сносят или меняют исходное положение в них.
Решившись на непоследовательную перепланировку хрущевки и избавившись от несущей стены, вы рискуете, что последствия этого будут плачевными. Часто перекрытия просто налетали, иногда это приводит даже к жертвам.
Самостоятельно выявить несущую стену можно, если посмотреть на ее толщину. Эти стены всегда намного толще остальных, которые представляют собой обычное разделение комнат. В основном несущая стена бывает толщиной не менее 50 сантиметров, при том, что все остальное достигается толщиной 15-20 см.
Если все же необходимо провести такую процедуру, как перепланировка хрущевки, а в несущей стене есть огромное желание сделать проем, можно выходить из положения, но надо очень постараться. Необходимо по установленным нормам верхнюю часть проема закрепить железобетонными или металлическими блоками. Второй допустимый вариант проема, который относится к прямой несущей стене, — это замена арки балконного блока.
Варианты перепланировки
Итак, если планировка хрущевки вас не устраивает, можно убрать перегородку между комнатами (если в квартире 3 комнаты) и получить много комфортного пространства, либо сделать трехкомнатная малая однокомнатная, но большая. Убрать между комнатами стену, если она не несущая, не составит особого труда.
Также можно сделать отдельный вход в каждую комнату. Делается это за счет удлинения прихожей. При таком варианте часто приходится жертвовать квадратными метрами комнаты.Кроме того, существует вариант закладки проема в одном месте и переноса его на другую стену или другое место.
Совмещение комнаты и кухни — популярный вариант для создания стильного современного интерьера. Когда-то считалось, что кухню можно изолировать от остальных комнат, но на данный момент это не единственный подход. Часто кухню также объединяют с гостиной. В этом случае это может быть неполная или полная комбинация, все зависит от дизайнерской задумки.В первом случае между комнатой и кухней делается небольшой проем, устанавливается арка или барная стойка. Границы между двумя зонами при полном разделении остаются исключительно визуальными.
Также есть возможность изменить размер ванной комнаты. Часто в двухкомнатном хрущевке встречается совмещенный санузел. Если есть желание разместить душевую кабину, стиральную машину, придется подобрать на кухне или в коридоре несколько квадратных метров (хотя такое решение возможно не в любой квартире — это зависит только от ее планировки) .
Более смелое решение — полная перепланировка. В этой ситуации полностью удаляются не поддерживающие стены. При этом собственники получают абсолютно новое свободное пространство, которое можно полностью разделить на функциональные зоны по собственному желанию. Если нет опыта строительных работ, проект перепланировки нужно адресовать профессионалам. Важно учитывать огромное количество технических моментов.
Перестенники
Это стены в квартире, которые не являются несущими.Если говорить о хрущевках, то там в основном из блоков, периодически из кирпича, а также стены из гипсокартона. При перепланировке, при возведении других стен самым простым материалом считается гипсокартон. Специально для дополнительной звукоизоляции этого современного материала используйте минеральную вату. Следует отметить, что работать с гипсокартоном просто и быстро. Это займет немного времени и финансовые затраты будут ниже.
На что обратить внимание
Нужно смотреть на балкон при перепланировке 2-х комнатной хрущевки.В том случае, если он совмещен с остальными комнатами, поможет немного расширить пространство. Если площадь позволяет, можно превратить балкон в полноценный кабинет.
При этом перепланировка хрущевки может быть частичной или полной. Независимо от выбранного варианта ремонта, необходимо внимательно и не один раз задуматься над любой мелочью. Только тщательный подход к работе позволяет получить функциональное и комфортное пространство.
С 1957 года, после принятия закона, предусматривавшего устранение излишеств в проектировании домов, в СССР строились дома нового типа. В народе такие дома назывались «хрущевки» (от имени Генерального секретаря ЦК КПСС Н.С.Хрущева). Второе название такие дома получили — хрущевки, в основном из-за неудобной и непропорциональной планировки комнат, узких коридоров и пролетов участков, тонких стен и как следствие — ужасной шумоизоляции.В этой статье мы расскажем о том, что характерно для серии хрущевок, постараемся выделить основные достоинства и недостатки этих построек. Особенности планировки будут представлены в виде описаний и фотографий.
Типовая серия хрущевок: основные достоинства и недостатки домов
Давайте рассмотрим основные характеристики квартир и определим особенности каждой серии хрущевок, которые возводились 27 лет. Стоит отметить, что изначально хрущевки предполагали использовать как временное жилье, так и срок строительства от 25 до 50 лет.Но, как известно, в таких домах живут люди и в наше время. К минусам хрущевки можно отнести плохую шумоизоляцию и теплоизоляцию (зимой прохладно, а летом слишком жарко в квартире), не всегда удачную планировку квартиры и подъезда: узкие коридоры, небольшая кухня, отсутствие вывоза мусора и очень часто лифта. К основным достоинствам таких домов можно отнести невысокую стоимость.
К основным достоинствам таких домов можно отнести невысокую стоимость жилья и развитую инфраструктуру вокруг дома.Как правило, недалеко от Хрущева есть детские сады, школы, магазины и отличная транспортная развязка. Если денег на покупку квартиры немного, что-то не самый плохой вариант. Причем такие постройки в Москве и других городах России подлежат сносу, в этом случае собственники получают новое жилье или реконструкцию и перепланировку.
серии 1-464 (1960-1967)
Общий чертеж:
Одна из самых популярных хрущевских серий в СССР — 1-464 (1960-1967).Это панельный дом в 5 этажей, редко встретишь 3- и 4-х этажные дома. Во всех квартирах есть балконы (также дополнительные кладовые), но лифты не предусмотрены, и жильцам дома приходится подниматься и спускаться по ступеням, что тяжело для пожилых людей, семей с маленькими детьми. Санузлы в квартирах совмещены, в подъезде нет общего мусора, а количество квартир на участке — 4. Высота потолков в квартирах 2,5 м2, кухня меньше 6 м2, если точнее — 5.8 м2. Квартиры 1, 2 и 3-х комнатные.
Рисунок — Рисунок:
1-комнатная:
2-комнатная:
3-комнатная:
серии 1-335 (1963-1967)
С 1963 по 1967 г. Территория застроена домами 1-335 серии. Это тоже панельные дома, с высотой потолков 2,54 м., Балконы в каждой квартире совмещены, санузлы, без лифта и вывоза мусора.Площадь кухни чуть больше, чем в предыдущей серии — 6,2 м2, площадь потолков — 2,5 м. На участке расположены четыре квартиры — от 1 до 3-х комнатные. Помимо балконов в квартирах есть дополнительные кладовые и встроенные шкафы.
1-комнатная:
2-комнатная:
серии 1-434 (1958-1964)
Эта серия строилась с 1958 по 1964 год, в разные годы разработки несколько видоизменила планировку квартиры.Например, в домах 1958 года в однокомнатных квартирах площадь жилой комнаты составляла 18,6 м2, а в 1959 году она уменьшилась до 18,2 м2, в 1969 году — комнаты была 17,7 м2. И так во всех типах квартир площадь жилых помещений варьировалась до уменьшения и увеличения. Но площадь кухни осталась неизменной — 5,8 м2, как и высота потолков — 2,5 м. Дом — кирпич, санузлы совмещены, в каждой квартире есть балкон, кладовая и встроенные шкафы.
Картины — чертеж (по годам)
1-комнатная 1958
1-комнатная 1959
1-комнатная 1960
1-комнатная 1961
1-комнатная 1964
2 спальни 1958
2 спальни 1959
2 спальни 1960
2-комнатная 1964
Массовое возведение панельных и кирпичных жилых домов, или хрущевок, с упрощенной планировкой квартир, малогабаритными комнатами и низкими потолками, до сих пор считается вынужденной мерой в строительстве, направленной на то, чтобы послевоенное поколение было более-менее живым. Корпус.Хотя на самом деле, чтобы массово построить что-то более удачное с точки зрения планировки комнат, ресурсов застройщика просто нет, так как дома строились на конвейере. За образец были взяты варианты планировки хрущевки на 2 комнаты, и, вытолкнувшись из типового жилья из двух раздельных комнат, хрущевку совмещали практически на ходу и даже 4 комнаты.
Что такое хрущевка двухкомнатная
За двадцать лет интенсивного строительства было использовано несколько проектов и серий хрущевок, квартиры строились из железобетонных панелей или кирпича, в четырех и пятиэтажном исполнении, с перекрытием высота 250 и даже 270 см, но внутренняя планировка помещений выдержана примерно по такой же схеме.
Практически все квартиры, за исключением блочных вариантов с тремя комнатами, построены по одним и тем же характеристикам:
- Общая планировочная площадь трехкомнатной квартиры в хрущевке составляла от 30 до 46 квадратов. из которых 8 м 2 отведено на спальню, 4,5 м 2 — на кухню, остальное — на холл — 14 м 2, коридор и подсобные помещения;
- Холл в планировке всегда проходной, то есть, чтобы попасть в самую удаленную спальню, нужно было пересечь гостиную или холл;
- Санузел для хрущевки мог быть отделен от санузла, но всегда находился в одном блоке с кухней и коридором, такая особенность планировки водных и канализационных коммуникаций.
В хрущевке при любой планировке всегда отсутствовали лифты и подсобные помещения для устройства электрощита, запорной и газораспределительной арматуры. Все жизненно важные краны и арматура либо перенесены в подвал, либо стояли на фасаде здания.
Важно! Стоит отметить, что качество возведения ставней из кирпича было намного выше панельных коробов.
Если дома из силикатного и красного кирпича, по некоторым оценкам, могут простоять до 100 лет, то панельные дома из железобетона теряют несущую способность после 40-45 лет эксплуатации.Большинство первых проектов первого проекта находятся в аварийном состоянии из-за ошибок в планировании и несправедливого обслуживания зданий.
Планировка двухкомнатной хрущевки
На долю хрущевок в крупных городах приходится около 70% жилого фонда. Для районных центров и поселков вклад хрущевки может доходить до 95%. Это связано с тем, что крупные города с середины 70-х не застраивались хрущевкой, исключения делались для жилых массивов, прилегающих к промзонам.Для Хрущевских райцентров с вариантами улучшенной планировки строили еще 5-7 лет.
Строительство хрущевки велось по нескольким сериям планировок:
- Первая серия 464, строилась с 1960 по 1967 год;
- пр. 335, постройки 1963-67 гг .;
- серий 1-434 и 1-434c использовались в качестве базовых проектов с 1958 по 1964 год.
К сведению! Практически все панельные хрущевки, а это 464 и 335 серии, имели кухонные увеличенные размеры, но имели исключительно плохую звуко- и теплоизоляцию.
Положение стало исправляться только с внедрением улучшенных железобетонных панелей, с 70-х в бетон стали добавлять керамзит, улучшилось качество цемента, увеличилась толщина панели, что частично снизило резкость проблема.
Панельная двухкомнатная хрущевка
Основой в строительстве панельной хрущевки была 335 серия.
Отличительной чертой планировки квартиры стало параллельное расположение комнат.Достоинством проекта считают относительно большую кухню 6,2 квадрата и хорошие возможности актуальности. Существенный минус — совмещенный санузел. Дверь на балкон выполнялась из гостиной.
Хрущевки 464 проекта также построены из панелей, в которых использованы те же принципы планировки, что и в серии 335. В проекте планировки кухни уменьшилась по площади и возникла незаменимая версия холла.
Как правило, на одном участке находилось четыре квартиры с разным количеством комнат, чаще всего это были варианты с одной однокомнатной, двумя двухкомнатными и одной трехкомнатной квартирой. Квартиры первого этажа отличались отсутствием балконов.
Сегодня наиболее популярная тема переплаты вариантов панельной двухкомнатной хрущевки затрагивает два основных момента — расширение кухонного помещения за счет использования коридора, ведущего из коридора в кухню и прилегающего к ванной и туалету.В этом случае стену между ванной и кухней разбирают, саму ванну переносят на территорию коридора. Такая планировка достаточно проста в реализации, так как сносимые стены и новая планировка облицованы кирпичом или гипсовым блоком. В результате кухню можно увеличить на 1,8 м 2.
Кирпичные варианты двухкомнатной хрущевки
Строительство кирпичных пятиэтажек произошло после развертывания интенсивной хрущевской застройки в райцентрах.Построить из силикатного кирпича оказалось проще, чем нести железобетонные панели на 70-80 км от железнодорожного вокзала, расположенного в пригороде райцентров.
Проект №434С в первую очередь ориентирован на возможность построения упрощенной планировки в условиях ограниченного использования кранов и подъемного оборудования. Чаще всего это были четырех- и пятиэтажные дома. Планировка квартир практически копирует панельные дома. С конца 60-х годов появились варианты планировки, при которых комнаты располагались продольно.Отчасти это было связано с необходимостью улучшить соляризацию помещений и уменьшить количество однокомнатных квартир в доме.
Больная тема всей хрущевки — площадь кухни уменьшилась до 5,9 м 2, но появились лоджии и увеличилась площадь кладовой. Остальные кирпичные хрущевки менее удобны для перепланировки. Как один из самых распространенных вариантов новой планировки предполагается перенос двери на кухню на внешнюю стену здания или даже частичный снос стены.В результате к кухонному помещению как бы присоединяется холл, и отпадает необходимость в узком и неудобном коридоре.
Особенности перепланировки хрущевки
Основная проблема изменения планировки комнат связана с необходимостью регистрации переделок в БТИ. Сделать новые документы довольно проблематично, поэтому все переделки домовладельцы стараются не афишировать.
Традиционно переделке в хрущевке подвергают в первую очередь кухню и коридор.На схеме показан наиболее популярный вариант улучшенной планировки хрущевок.
В первую очередь сокращается площадь коридора за счет сдачи кладовой. Далее при такой схеме сноса перегородок из кирпича комнаты объединяются в одну и соединяются с кухней, без межкомнатных дверей. Вход в блочный санузел теперь из коридора, что довольно удобно и практично. Пространство кухни в этом варианте при необходимости занимает до одной четвертой общей площади зала.
Существенно изменена планировка туалета и ванной. За счет выравнивания есть возможность перемещать ванну под стену, не меняя точек установки унитаза, за которым следует стояк канализации. От кухни до туалета идет канализационная труба, поэтому иначе выполнить планировку невозможно.
Вывод
Недостатком такого варианта планировки комнаты является слишком малая площадь прихожей, места для обуви и верхней одежды будет достаточно, но в комнате сможет разместиться только один человек.Кроме того, бытовая техника, без которой сегодня нет современной кухни, будет серьезной проблемой для тех, кто работает или отдыхает в зале, поэтому проем между залом и кухней придется закрыть раздвижными дверцами или стационарной звукоизоляцией ширмой. .
Массовое возведение панельных и кирпичных жилых домов, или хрущевок, с упрощенной планировкой квартир, малогабаритными комнатами и низкими потолками, до сих пор считается вынужденной мерой в строительстве, направленной на то, чтобы послевоенное поколение было более-менее живым. Корпус.Хотя на самом деле, чтобы массово построить что-то более удачное с точки зрения планировки комнат, ресурсов застройщика просто нет, так как дома строились на конвейере. За образец были взяты варианты планировки хрущевки на 2 комнаты, и, вытолкнувшись из типового жилья из двух раздельных комнат, хрущевку совмещали практически на ходу и даже 4 комнаты.
Что такое хрущевка двухкомнатная
За двадцать лет интенсивного строительства было использовано несколько проектов и серий хрущевок, квартиры строились из железобетонных панелей или кирпича, в четырех- и пятиэтажном исполнении, с высота потолков 250 и даже 270 см, но внутренняя планировка помещений выдержана примерно по такой же схеме.
Практически все квартиры, за исключением блочных вариантов с тремя комнатами, построены по одним и тем же характеристикам:
- Общая планировочная площадь трехкомнатной квартиры в хрущевке составляла от 30 до 46 квадратов, 8 м2 отведено под спальню, 4,5 м2 — под кухню, остальное — под холл — 14 м2, коридор и подсобные помещения;
- Холл в планировке всегда проходной, то есть, чтобы попасть в самую удаленную спальню, нужно было пересечь гостиную или холл;
- Санузел для хрущевки мог быть отделен от санузла, но всегда находился в одном блоке с кухней и коридором, такая особенность планировки водных и канализационных коммуникаций.
В хрущевке при любой планировке всегда отсутствовали лифты и подсобные помещения для устройства электрощита, запорной и газораспределительной арматуры. Все жизненно важные краны и арматура либо перенесены в подвал, либо стояли на фасаде здания.
Важно! Стоит отметить, что качество возведения ставней из кирпича было намного выше панельных коробов.
Если дома из силикатного и красного кирпича, по некоторым оценкам, могут простоять до 100 лет, то панельные дома из железобетона теряют несущую способность после 40-45 лет эксплуатации.Большинство первых проектов первого проекта находятся в аварийном состоянии из-за ошибок в планировании и несправедливого обслуживания зданий.
Планировка двухкомнатной хрущевки
На долю хрущевок в крупных городах приходится около 70% жилого фонда. Для районных центров и поселков вклад хрущевки может доходить до 95%. Это связано с тем, что крупные города с середины 70-х не застраивались хрущевкой, исключения делались для жилых массивов, прилегающих к промзонам.Для Хрущевских райцентров с вариантами улучшенной планировки строили еще 5-7 лет.
Строительство хрущевки велось по нескольким сериям планировок:
- Первая серия 464, строилась с 1960 по 1967 год;
- пр. 335, постройки 1963-67 гг .;
- серий 1-434 и 1-434c использовались в качестве базовых проектов с 1958 по 1964 год.
К сведению! Практически все панельные хрущевки, а это 464 и 335 серии, имели кухонные увеличенные размеры, но имели исключительно плохую звуко- и теплоизоляцию.
Положение стало исправляться только с внедрением улучшенных железобетонных панелей, с 70-х в бетон стали добавлять керамзит, улучшилось качество цемента, увеличилась толщина панели, что частично снизило резкость проблема.
Панельная двухкомнатная хрущевка
Основой в строительстве панельной хрущевки была 335 серия.
Отличительной чертой планировки квартиры стало параллельное расположение комнат.Достоинством проекта считают относительно большую кухню 6,2 квадрата и хорошие возможности актуальности. Существенный минус — совмещенный санузел. Дверь на балкон выполнялась из гостиной.
Хрущевки 464 проекта также построены из панелей, в которых использованы те же принципы планировки, что и в серии 335. В проекте планировки кухни уменьшилась по площади и возникла незаменимая версия холла.
Как правило, на одном участке находилось четыре квартиры с разным количеством комнат, чаще всего это были варианты с одной однокомнатной, двумя двухкомнатными и одной трехкомнатной квартирой. Квартиры первого этажа отличались отсутствием балконов.
Сегодня наиболее популярная тема переплаты вариантов панельной двухкомнатной хрущевки затрагивает два основных момента — расширение кухонного помещения за счет использования коридора, ведущего из коридора в кухню и прилегающего к ванной и туалету.В этом случае стену между ванной и кухней разбирают, саму ванну переносят на территорию коридора. Такая планировка достаточно проста в реализации, так как сносимые стены и новая планировка облицованы кирпичом или гипсовым блоком. В результате кухню можно увеличить на 1,8 м2.
Кирпичные варианты двухкомнатной хрущевки
Строительство кирпичных пятиэтажек началось после развертывания интенсивной хрущевской застройки в райцентрах.Построить из силикатного кирпича оказалось проще, чем нести железобетонные панели на 70-80 км от железнодорожного вокзала, расположенного в пригороде райцентров.
Проект №434С в первую очередь ориентирован на возможность построения упрощенной планировки в условиях ограниченного использования кранов и подъемного оборудования. Чаще всего это были четырех- и пятиэтажные дома. Планировка квартир практически копирует панельные дома. С конца 60-х годов появились варианты планировки, при которых комнаты располагались продольно.Отчасти это было связано с необходимостью улучшить соляризацию помещений и уменьшить количество однокомнатных квартир в доме.
Больная тема всей хрущевки — площадь кухни уменьшилась до 5,9 м2, но появились лоджии и увеличилась площадь кладовой. Остальные кирпичные хрущевки менее удобны для перепланировки. Как один из самых распространенных вариантов новой планировки предполагается перенос двери на кухню на внешнюю стену здания или даже частичный снос стены.В результате к кухонному помещению как бы присоединяется холл, и отпадает необходимость в узком и неудобном коридоре.
Особенности перепланировки хрущевки
Основная проблема изменения планировки комнат связана с необходимостью регистрации переделок в БТИ. Сделать новые документы довольно проблематично, поэтому все переделки домовладельцы стараются не афишировать.
Традиционно переделке в хрущевке подвергают в первую очередь кухню и коридор.На схеме показан наиболее популярный вариант улучшенной планировки хрущевок.
В первую очередь сокращается площадь коридора за счет сдачи кладовой. Далее при такой схеме сноса перегородок из кирпича комнаты объединяются в одну и соединяются с кухней, без межкомнатных дверей. Вход в блочный санузел теперь из коридора, что довольно удобно и практично. Пространство кухни в этом варианте при необходимости занимает до одной четвертой общей площади зала.
Существенно изменена планировка туалета и ванной. За счет выравнивания есть возможность перемещать ванну под стену, не меняя точек установки унитаза, за которым следует стояк канализации. От кухни до туалета идет канализационная труба, поэтому иначе выполнить планировку невозможно.
Вывод
Недостатком такого варианта планировки комнаты является слишком малая площадь прихожей, места для обуви и верхней одежды будет достаточно, но в комнате сможет разместиться только один человек.Кроме того, бытовая техника, без которой сегодня нет современной кухни, будет серьезной проблемой для тех, кто работает или отдыхает в зале, поэтому проем между залом и кухней придется закрыть или в стационарной звукоизоляционной перегородке. .
вариантов перепланировки двухкомнатной квартиры, примеры интересного дизайна комнат в категории «три рубля»
Содержимое
- Характеристики
- макет
- Необходимые документы
- Возможные варианты перепланировки
- Туалет и смежные комнаты
- Стены
- Чем застелить пол?
- потолок
- Немного об интерьере
- Еще раз о свете и цвете
Каждая квартира уникальна, как по площади, так и по планировке.Иногда хозяева недовольны положением той или иной комнаты. Довольно часто для визуального расширения приходится ставить предметы интерьера так, чтобы комната казалась шире. Иногда без капремонта не обойтись. Жильцы решают провести капитальные строительные работы, например, снос стен.
Распоряжение «хрущевкой» может оказаться не только утомительным, но и интересным занятием. Вы сможете полностью проявить свои дизайнерские способности. «Трешки» в кирпичном доме могут стать вашим неповторимым творением.
Характеристики
В 1950 году появился первый дом, который вскоре назовут «хрущевкой». Здания построены добротно, а значит, эти дома, наверное, стоят очень долго. Конечно, через год после ремонта, увеличивающего срок службы дома через год.
Известно, что этот тип дома планировался и строился как временное сооружение, но по совпадению здание стало постоянным домом для многих семей.
«хрущевки» можно определить по следующим критериям:
- очень низкие потолки;
- Квартира с малой квадратной метрой;
- санузел без стен, совмещенный;
- из одной комнаты можно перейти в другую, иногда смежные комнаты;
- слышно что творится у соседей за стеной, шумоизоляция просто ужасная;
- холодильные камеры, которые прибывают в дополнение к теплу.
Большим преимуществом квартиры является то, что ни одна стена не зависит от другой. Если вы затеяли ремонт, который предполагает снос стен, вы легко сможете осуществить задуманное.
Нет опасений, что в любой момент из-за ошибок строительства обрушится весь дом, чего нельзя сказать о других постройках.
макет
Рассмотрим типовые виды 3-х комнатной квартиры в стиле «хрущевка»:
- четко выражены в одной большой комнате, две другие всегда намного меньше;
- Две комнаты расположены вместе и немного в стороне;
- комнаты, пригодные для проживания, находятся на противоположных сторонах дома;
- номера изолированы друг от друга.
Преимущество этих квартир в том, что в одной из жилых комнат есть так называемая кладовая. Хорошо, что под плащ обычно отводится место. Pretty хороший вариант сэкономить и отказаться от покупки габаритных шкафов , которые значительно уменьшат площадь в метражах и сделают комнату меньше.
Самый большой зал, в основном, это гостевой. Где можно собраться всей семьей или компанией. Пространства на всех хватит.Еще одна комната выбирается как спальня.
Последнее предпочтение комнаты как спальни для детей.
Необходимые документы
Ремонт и модернизация производятся в следующем порядке. Для начала нужно проконсультироваться со специалистами, которые утвердят ваш эскиз новой планировки квартиры. Положительные результаты этого этапа необходимы для следующего шага — подписи и разрешения администрации на ремонт в вашей квартире.
Необходимо предоставить документы:
- эскиз;
- Рисунок квартиры с выраженными изменениями;
- проект.
Если вы планируете нанести эскиз квартиры на бумаге, вам необходимо собрать ряд необходимых документов. Преимущество двухкомнатных квартир, как уже говорилось ранее, — это встроенный шкаф-купе или шкаф, который входит в планировку квартиры.
Поэтому, чтобы отремонтированная квартира превратилась в уютное и просторное жилье, подходящее для комфортной жизни, желательно получить лицензию от Организации проекта жилищного плана.
Возможные варианты перепланировки
метра Увеличить, к сожалению, не удастся, но перестроить и поменять помещение можно следующими способами:
- однокомнатная квартира, полный снос стен;
- Некоторые номера совмещены друг с другом.
Самым «больным» местом «хрущевок» является кухня. Обычно его размеры не превышают 6 квадратных метров, что часто не нравится хозяйке дома. Чтобы семье не было тесно на таком маленьком пространстве, кухня чаще всего подвергается перепланировке.
Бесспорное решение по увеличению площади кухни — это ее связь с публикой. Большим преимуществом является не только большое пространство, но и дополнительная ванна расширения и туалет. Большой семейный номер можно оборудовать обеденным столом, и больше не придется толпиться за обедом.
Вместо стен и дверей можно использовать раздвижные перегородки. Квартира, которая находится на углу, хороша тем, что в ней на одно окно больше, чем в квартире, расположенной в центре дома.
Благодаря этому преимуществу при планировке спален проектируется дополнительная гостиная.
Туалет и смежные комнаты
Для увеличения площади санузла вместо ванны душевой гарнитур. На место в ванной или на кухне поставьте стиральную машину-автомат. Часто перепланировка включает балкон, потихоньку совмещая его с некоторыми комнатами . Проблем с эксплуатацией здания и юридических нарушений не будет. Перед тем как оформить жилое помещение на балконе, его сначала утепляют, а потом декорируют на свой вкус.
Смежные комнаты — огромная проблема для семьи из трех и более человек. Для увеличения длины коридора необходимо уменьшить метраж в комнате. В конечном итоге жильцы могут порадоваться, что не нужно ходить из комнаты в комнату, и теперь есть коридор.
Не забывайте важную рекомендацию, что увеличивать унитаз из других комнат нежелательно.
Стены
Самым главным является ремонт сноса или сдвига стен.Одна маленькая ошибка и может обрушить все здание. Все взаимозачеты должны строго согласовываться с вышестоящими инстанциями. За помощью обращайтесь к инженерам, которые посоветуют и нарисуют эскиз нужной квартиры с новым планом.
Иногда достаточно пробить маленькую дырочку в стене , применить немного фантазии, и в итоге у вас получится потрясающая комната. Это касается стены между гостиной и кухней. Но не забывайте, что в другое время его использовали как несущую стену.Это необходимо уточнить у специалиста, чтобы избежать неприятных последствий.
А теперь — несколько советов по увеличению пространства: чтобы визуально расширить комнату яркими, купите обои с мелким рисунком, узором или горизонтальной полосой.
Чем накрыть пол?
В отличие от современных квартир в квартире 3 «хрущевки» пол покрыт деревянными досками. Срок службы пола не более 30 лет. Все зависит от влажности в квартире и условий эксплуатации напольного покрытия.
Не забываем, что было не только расположение стен, но и пола при капремонте.
Если жильцы решили застелить пол линолеумом или ламинатом, то в первую очередь необходимо провести замену старого пола и выровнять все его недостатки. Исключение составляет плитка, при укладке которой выравнивание пола не требуется. Последний идеально подходит для напольных покрытий однокомнатных квартир, которые часто переделывают трехкомнатную квартиру в «хрущевке».
Если каждую стену в квартире покрыть шпаклевкой и поклеить обоями с разным орнаментом, получится очень уютная и красивая квартира. За счет разного рисунка стены приобретают иллюзию удаленности друг от друга.
потолок
Стоит учесть, что не нужно покупать для покрытия огромных массивных люстр. Самый оптимальный из них — точечные светильники. Низкий потолок оформить как стены в светлых тонах . В отличие от более темных оттенков, свет не «давит» жильцам квартиры.Иногда используют зеркало. Также неплохим вариантом будет использование потолка многоуровневыми ступенями, что тоже хорошо может визуально увеличить квартиру.
Будьте осторожны, чтобы натяжитель потолка или гипсокартона, покрывающий потолок, часто вычитал сантиметры, были незаметны, но все же уменьшали потолок. Иногда такие варианты ремонта неприемлемы.
Остановите свой выбор на простой покраске, правильно подобранный цвет оттенка не уступит ни натяжному потолку, ни гипсокартону.
Немного об интерьере
Выбирая стиль интерьера, будьте внимательны, не покупайте малогабаритную квартиру с маленькой жилплощадью или огромные статуи из громоздких шкафов. Рассмотрим случай минимализма в интерьере:
- Используются только светлые тона, начиная от белого и заканчивая бежевым или бирюзовым.
- Не использовать в декоре сложные элементы. Побольше простоты, и результат не заставит себя ждать.
- Используйте одну сплошную область комнаты.
- Вместо люстр купите точечные светильники или лампы.
- Ничто не заменит естественного света, больше окон — больше света.
Минималистичный дизайн хорош тем, что в его декоре используются вещи-трансформеры, например кровать, диван или стол. Лучшим вариантом для кухни будет гарнитур с полноценными шкафами, на всю длину стены от пола до потолка.
Не бойтесь использовать зеркало, и мебель ставится четко в углу, а не в центре комнаты.
Еще раз о свете и цвете
Трехкомнатная квартира будет в разы привлекательнее, если в оформлении использованы вазы, картины и фото в рамах. Желательно, чтобы в квартире было много окон. Замаскируйте возможные осветительные приборы, проявите фантазию, например, со светильником.
Когда светлые потолки и стены подчеркнут «светлыми пятнами» в дизайне Например, красный узор с вазами или декорациями. Не бойтесь играть с цветами и сочетать их друг с другом.Во многих случаях после качественного ремонта старых квартир вы не увидите тех же «хрущевок», а результат порадует вас и ваших близких.
Подробнее о том, как сделать перепланировку в 3-х комнатной квартире в «хрущевке», вы узнаете из следующего видео.
Запрещается использование любого контента без нашего предварительного письменного согласия.
Эксплуатация вариантов на хрущевку. Перепланировка двухкомнатной хрущевки
Однокомнатная хрущевка — «Книга» до перепланировки
Однокомнатная хрущевка — «Книга» после перепланировки
Как видно из чертежа, после перепланировки он значительно уменьшается и поэтому небольшая площадь зала, но многие были готовы пойти в него, только бы не ходить друг в друга.
Увеличить кухню в таких квартирах практически невозможно, поэтому я называю «книги» самых неудачных планировок.
Перепланировка двухкомнатной хрущевки — «трамвай»
Однокомнатная хрущевка — «Трамвай» до перепланировки
Однокомнатная хрущевка — «Трамвай» после перепланировки
Вот только просится стена, отделяющая зал. Зал уменьшается, но поскольку его площадь составляет 18 кв.м, то оставшегося места вполне достаточно для комфортной жизни.Гардероб, который делается в конце коридора, получается очень вместительным и удобным.
На кухне тоже почти невозможно увеличить.
Редевелопмент двухкомнатной хрущевки — «Мини-улучшенный»
Здесь комнаты изначально раздельные, что уже большой плюс. Также можно увеличить кухню, перенеся унитаз на место кладовой, а ванную — на место унитаза. Смотрите чертежи до и после перепланировки.
Если вы владелец небольшого жилья с двумя проходными комнатами, не спешите отчаиваться.Ведь границы комнаты можно переносить, а пространство расширять. Как это сделать? Использование грамотной перепланировки и визуальных эффектов.
Расширение жилой площади
Типичная квартира с коридором, туристической гостиной и спальней, отдыхающая в маленькой кухне, называется на языке Лизель Лизель. Жить в нем неудобно. Поэтому перед тем, как приступить к ремонтным работам, нужно одеть стены. Перепланировка 2-х комнатной квартиры с проходными комнатами будет успешной при выполнении нескольких условий:
- объединение столовой и жилой зоны;
- снос межкомнатных перегородок;
- уменьшение размера коридора;
- совмещающий небольшой туалет и ванную комнату.Взаимодействие с другими людьми
Минимализм в интерьере
Для получения красивого интерьера современной 2-х комнатной квартиры можно руководствоваться принципами минимализма. Это очень простой и лаконичный стиль. Что для него характерно?
1. Соблюдение простых геометрических форм. Подбирайте мебель без изгибов и декора сосудов. Светильники из матового стекла, пластиковых и хромированных деталей могут быть круглыми, квадратными и многоугольными.
Планировка квартиры «трейлер» в Москве.Фото
2. Для отделки поверхностей выберите несколько цветов, один из которых бежевый или белый. На его фоне хорошо смотрятся яркие предметы декора.
3. Не перегружайте настройки деталями.
4. Используйте большие зеркальные и глянцевые поверхности. Взаимодействие с другими людьми
Получение отделки поверхности
Чтобы максимально увеличить площадь, разместив интерьер современной 2-х комнатной квартиры, используйте такие приемы.
1. Для цветной раскраски используйте два цвета — основной белый и контрастный.Например, бирюза будет смотреться как в спальне, так и в умиротворении. Для кухни с южными окнами отлично подойдет синий цвет. В гостиной можно смешать несколько ярких тонов для декора центральной стены.
2. Позаботьтесь об освещении. Фары должно быть много. Прекрасный вариант — сочетание центральной люстры с дополнительными лампами направленного света.
Грамотная перепланировка 2-х комнатной квартиры с проходными комнатами превратит ее в функциональное, модное и комфортное жилье.
Как оформить квартиру с проходной комнатой так, чтобы разместить все важные функциональные зоны и обеспечить всем членам семьи уединение и комфорт? Предлагаем 4. Хорошие варианты Планировки.
Двухкомнатная квартира вполне комфортна для проживания и для молодой пары, и для семьи с детьми. Но что делать, если одна из комнат проходная — можно ли обустроить ее с комфортом и удобством? Мы разбираемся в этом вопросе с архитектором Анастасией Киселевой, а эксперт Максим Джураев рассказывает о нюансах согласования.
Двухкомнатная квартира в доме серии И-209
Здания модельного ряда а-209а — блочные дома башенного типа. В основном построен в 1970-1980-х годах. В Москве такие дома построили в районах Черемушки, Беляево, Бирюлево, Хамовники, Медведково, Кузьминки. В Подмосковье — в городах: Люберцы, Балашиха, Одинцово, Красногорск, Химки, Щербинка, Сергиев Посад, Лобня.
К минусовой планировке можно отнести очень маленький санузел и проходящую жилую комнату.Из плюсов: большая лоджия и относительно просторная кухня. А наличие ненесущих перегородок позволяет улучшить планировку.
Вариант 1: Для семьи из двух человек
Вход на кухню сделали из жилого помещения: за счет такого переноса получилось увеличить площадь санузла и установить в нем все необходимое. В коридоре перенесена перегородка: хватило места для встроенного шкафа, а Ниша была сформирована со стороны комнаты — ее домашний кабинет отлично вписался в него.
На кухне установлен просторный П-образный гарнитур с барной стойкой. В гостиной расположена удобная ТВ-зона, а в спальне оборудована полноценная гардеробная.
Экспертное заключение: Редевелопмент может быть согласован по проекту и техническому заключению любой проектной организации, имеющей допуск СРО.
Вариант 2: Для семьи с ребенком
Проходная комната разделена на две зоны: спальное место родителей и гостиную с телевизором.Спальня была отделена раздвижными перегородками. На утепленной лоджии размещено рабочее место для родителей. На кухне гарнитур ставили вдоль окна — можно было выделить место для большого обеденного стола.
В изолированной комнате — детской: в ней размещаются большой рабочий стол, тумбочки и тумбочки. Санузел оставлен без изменений, стиральная машина — под раковиной.
Мнение эксперта: Согласитесь с такой схемой просто — нужен проект и техническое заключение.Организация, которая будет производить ремонт, также должна иметь соответствующий допуск СРО и предоставлять акты скрытых работ по гидроизоляции и шумоизоляции пола.
Вариант 3: Для семьи с двумя детьми
Для детской отвели отдельную комнату. На небольшой площади можно разместить все необходимое: шкаф, двухуровневую кровать, рабочий стол, спортивный уголок. Коридор был разделен на две зоны: так, чтобы в коридоре можно было оборудовать небольшую гардеробную.
На кухне установлен большой М-образный гарнитур с правильным рабочим треугольником и обеденным столом. В санузле разместили душевую кабину: сразу нашлось место для стиральной машины и шкафов для хранения вещей.
Мнение эксперта: Так как затронуты только незанятые перегородки, потребуется только проект перепланировки и техническое заключение любой проектной организации на согласование.
Вариант 4: Для семьи с одним ребенком
В данном варианте возможен перенос проема в несущую стену.Если сдвинуть проем, можно сделать две изолированные комнаты. Тогда в большой комнате будет спальня родителей, а в малой — детская. На остальной площади размещены прихожая, гардеробная и частично санузел. Кухня совмещает в себе функции гостиной: здесь уместился небольшой диванчик и телевизор.
Мнение эксперта: В данном варианте проем перенесен в несущую стену, но сложностей с согласованием не возникнет. Вам понадобится освежающий проект и техническое заключение от проектной организации.
тонкостей верстки и дизайна
Пятиэтажные панельные дома серии 1-464
Многоквартирные 4-5-этажные жилые дома серии типовых проектов 1-464 — самые распространенные полукровные дома первого поколения. Решением домов рассматриваемой серии является конструктивная система с поперечными стенками.
Основным несущим ядром здания являются поперечные железобетонные стены, расположенные с шагом 3.2 и 2,6 м, благодаря чему дома этого типа получили название домов с «узким» шагом поперечных несущих стен. В их основе лежат железобетонные плиты перекрытия «по комнате». В их основе также лежат наружные и внутренние продольные стены, которые воспринимают часть вертикальной нагрузки, обеспечивая при этом продольную жесткость здания.
Плиты перекрытия, уложенные с шагом 3,2м, спроектированы и эксплуатируются опорными по контуру. Поскольку все разделяющие комнаты внутренние стены нагружены перекрывающимися и перекрывающими перекрытиями, сдвинуть эти стены и тем самым изменить ширину помещения невозможно.По этой же причине устраняется снятие наружных стен на шаге 3,2м без обеспечения проема перекрытия на короткой внешней стене.
Наружные стены выполняются из трехслойных панелей, состоящих из двух железобетонных оболочек и слоя утеплителя между ними, или однослойных панелей (из легкого бетона). Внутренние несущие стены толщиной 12 см и плиты перекрытий толщиной 10 см представляют собой железобетонные перекрытия сплошного сечения. Кровля совмещается с рулонной мягкой кровлей или чердаком с кровлей из асбестоцемента.
При перепланировке домов серии 1-464 возникает необходимость в новом или расширении имеющихся проемов в поперечных стенах. Для ограниченных лимитов это возможно, но требует подтверждения расчетами.
При модернизации здания плиты межэтажных перекрытий не подлежат демонтажу. Однако при надстройке перекрытия зданий над существующим пятым этажом возможен частичный демонтаж. Устройство в их новых проемах возможно, но при больших размерах таких проемов может потребоваться перекрытие.
В рассматриваемой серии балконы ставятся с шагом 3,2м. Балконные железобетонные плиты толщиной 10см и шириной 90см монтируются по двум схемам. В начальный период строительства они опирались на внешнюю стену и держались в проекте двумя металлическими тягами, которые, проходя через стык между внешними стенами, крепились к торцу внутренней стеновой панели. В более поздних проектах от такого решения отказались, и, рассчитав балконную плиту как консоль, подведенную к внешней стене, соединили ее с перекрытием плиты с помощью сварных закладных элементов.
Пятиэтажные панельные дома серии 1-468
Типовые проекты жилых домов серии 1-468 изначально разрабатывались в институте ГРУТРОПРОЕКТ, с 1961 года — в ЦНИИеплиге.
Несущие повседневные дома этой серии представляют собой поперечные несущие стены, расположенные с шагом 3 и 6 м, за счет чего, в отличие от домов серии 1-464, дома данной конструктивной системы получили название домов с «смешанный» шаг поперечных несущих стен.
Самый распространенный представитель домов этой серии — пятиэтажный четырехсекционный жилой дом. В нем наружные стеновые панели выполнены из ячеистого бетона автоклавного твердения или из легкого бетона, а многоконсольные железобетонные перекрытия — на поперечно несущих железобетонных стенах. Продольные стены здания — самонесущие. Крыши таких домов строились в двух вариантах: совмещенная с рулонным покрытием и мансардная ступень с кровлей из волнистых асбестоцементных листов.
Основным преимуществом рассматриваемых домов является то, что панели перекрытия не опираются на продольные стены здания. Поэтому эти стены, помимо отдельных участков внутренней стены, примыкающих к лестничным клеткам и обеспечивающих продольную устойчивость здания, можно демонтировать в отдельных местах. Это обстоятельство открывает при модернизации таких зданий широкие возможности по устранению недостатков в планировке существующих квартир за счет расширения в здания дополнительных объемов.Устройство новых и расширение существующих проемов в несущих поперечных стенах возможно только при подтверждении расчета и усилении «контуров» проемов.
Пятиэтажные панельные дома серии 1-335
Пятиэтажные жилые дома серии типовых проектов 1-335 являются представителями каркасно-панельной конструкционной системы. Типовые проекты этой серии изначально разрабатывались авторским коллективом Ленинградского конструкторского бюро, а затем были продолжены в Институте ЛензиЭЭП.
Расчетная схема дома представляет собой так называемый «неполный» каркас, который состоит из одного ряда железобетонных колонн, расположенных по средней продольной оси здания с шагом 3,2 и 2,6 м, и железобетонных реглелей, расположенных поперек сооружение и опирается с одной стороны на железобетонные колонны, а с другой стороны, на металлические опорные столы, заделанные в корпус несущей панели наружных стеновых панелей. Плиты железобетонные внахлест размером «по комнате», рассчитанные на опору по двум длинным сторонам.Колонны между собой соединены между собой прогонами, что обеспечивает продольную жесткость здания.
В домах рассматриваемой системы несущие наружные стены применялись в основном слоистыми. Они имеют внешний слой в виде железобетонной ребристой «оболочки» и внутренний (утепленный) из пенобетона толщиной 26см, поверхность которого со стороны помещения оштукатурена. В этих домах нет внутренних несущих стен, за исключением диафрагм твердости, которые служат стенами пересечения ячеек лестницы.
При одинаковых размерах и шагах домов разных серий в домах каркасно-панельной системы принцип «Свободной планировки» может быть реализован полностью. Наличие такелажников под плитами полов можно считать определенным недостатком, препятствующим традиционному формированию интерьера жилых помещений.
Модификацией этой конструктивной системы стало введение в нее двухъярусных колонн — в наружных стенах здания для перестройки ригелей.Такие дома называли «домами с полным каркасом». В них внешние стены являются самонесущими и могут быть демонтированы при реконструкции.
Пятиэтажные кирпичные дома 1-447 серии
В серию 1-447 входят типовые проекты 4-5 этажных кирпичных жилых домов с тремя продольными несущими стенами. Несущие жилые дома рассматриваемой серии представляют собой три продольные несущие стены и поперечные кирпичные стены — внешнюю торцевую и внутреннюю, между которыми расположены лестничные клетки.Поперечные кирпичные стены выполняют роль диафрагм твердости. Все остальные стенки (внутриквартальные и межкардные) — нонсенс.
Полы выполнены в виде железобетонных многослойных плит, открытых короткими сторонами на продольных кирпичных стенах. Наиболее нагружена средняя стена, на которую с двух сторон опираются панели перекрытия. В наружных продольных стенках проемы можно увеличить только за счет исключения подсхемной части при сохранении имеющейся простоты. Перемычки над окнами тоже следует сохранить.В торцевых стенах здания при реконструкции возможно устройство открывания.
Возможен демонтаж перегородок серии 1-447
Дома хрущевки представляют собой панельные, кирпичные или блочные дома, строительство которых было массовым во времена СССР при руководстве Н.С. Хрущева. Отсюда и народное название — «хрущевки». Наиболее распространены серии 1-335 (впоследствии модернизированные до 1-335 A, 1-335 K, 1-335 AK, 1-335 D), 1-447, 1-464.
Архитектура и планирование
Строительство началось в далеком 1959 году, но в 1966 году было приостановлено из-за несоответствия климатическим условиям.Но, несмотря на это, позже строительство домов этого типа было возобновлено и продолжалось до 80-х годов.
Изначально они рассматривались как временное жилье для переселения жителей из сел и деревень, но, как известно, нет ничего более постоянного, чем временное. Поэтому сейчас таких домов очень много. В Москве и Санкт-Петербурге они подлежат сносу в ближайшее время. А на периферии этого не произойдет. Максимум — занялся их капитальным ремонтом.
«Хрущевки» — простые, без лишних архитектурных решений конструкции из четырех-пяти этажей.Лифта на такой этаж не предусмотрено, мусоропровод встречается редко. В основном это объекты панельного типа. Объясняется это тем, что на их возведение потребовались короткие сроки и минимальные затраты.
В малых городах «хрущевки» строили из кирпича с железобетонными перекрытиями. Иногда дома утепляли минеральной ватой, а фасад отделывали керамической плиткой. Снаружи они казались привлекательнее, но внутри не отличались.
Квартиры имеют одну-две комнаты (затем большие из них проходные), реже три, небольшую кухню размером от 5 до 7 м2, санузел совмещенный. Высота потолков колеблется от 2,5 м до 2,6 м. Окна двустворчатые, почти квадратные. Все коммуникации центральные. Иногда на кухне устанавливали газовую колонку для обеспечения горячей воды на кухне.
Достоинством таких домов был балкон и кладовая. Для первых этажей балкон не предусмотрен.Под окном на кухне в домах хрущевки имелся небольшой шкаф, который зимой служил холодильником.
К следующим можно отнести:
- низкая теплоизоляция стен;
- тонкая, лишенная звукоизоляции перегородка;
- малая кухня;
- малая площадь всей квартиры;
- узких коридора и прихожей.
Некоторые недостатки этих помещений можно исправить. Поэтому «хрущевки» получили широкое распространение. В однокомнатной сделана однокомнатная квартира, в двухкомнатной изолированные комнаты. Все больше квартир приобретают кухню-столовую.
Рассмотрим подробнее однокомнатные варианты.
Характеристики
В основном «однушка» имеет общую площадь около 30 м2, из них жилая около 18 м2, кухня около 6 м2.Эти показатели могут незначительно отличаться. В угловых квартирах два окна, в простых — одно. Окна кухни и жилой части более чем одинаковы. Часто между ванной и кухней бывает небольшое окошко.
Однокомнатная «хрущевка» выполнена в виде куба с внутренними перегородками. Несущих стен внутри его нет. Это дает возможность снести и перенести стрелу по вашему желанию.
Однако для начала необходимо получить на это разрешение, а потом легализовать нововведения.
Студия
Модным трендом в наше время является квартира-студия, сочетающая в себе пространство кухни, комнаты и прихожей. Выбранная модель пространства может быть реализована для квартиры «хрущевки» любой серии домов.
Этот вариант подходит для одного человека или молодой пары без детей. Для юридического подтверждения планировки требуется замена газовой плиты на электрическую.
Также можно оставить отдельную прихожую, за которой находится небольшая гардеробная и санузел.Остальное пространство будет состоять из зоны гостиной, кухонной поверхности и спальни.
Разделить визуально пространство поможет декор стен и установка мебели. Отделить спальню от гостиной можно встроенным телевизором, который при необходимости вращается в ту или иную сторону.
Барная стойка или символическая круглая арка подойдет для разделения кухонной зоны. Никакой нагрузки, кроме эстетической, он не несет.
Кровать можно отделить ширмой или занавеской в тон мебели. Удачным местом для нее станет проем для прихожей. Таким образом, получается неприметная кровать, а не машинное пространство.
Для интерьера больше всего подходит скандинавский стиль , суть которого заключается в светлом незагруженном помещении с минимумом декора. Это визуально расширит квартиру и придаст уют вашему дому.
В результате получается свободное пространство, не загроможденное никакими стенами. Из минусов можно отметить отсутствие в комнате изолированных комнат.
Модернизация санузла
Подходит вариант для «хрущевки» с раздельным санузлом (серии 1-511, 1-515). Суть метода — увеличить ванную за счет коридора, чтобы туда поместились ванна, раковина и стиральная машина. Вы можете просто объединить ванную комнату и ванную комнату. Затем последняя расширится до желаемых размеров и разместит перечисленные элементы и унитаз.
Как таковая прихожая исчезает, но увеличивается пространство для кухонной зоны и зоны отдыха.
Барьер между ними можно перенести на нескольких человек в комнате. Тогда получится довольно широкая кухня, вмещающая за столом из четырех человек, и гостиная, в которой размещен диван-кровать, над которым можно расположить разного рода полочки, и шкаф.Места для посадки можно увеличить за счет небольших стремян, компактно сложив в журнальный столик.
Современные художники и дизайнеры создают многофункциональную мебель, которая поможет сэкономить место в небольшой квартире. Это может быть раскладной шкаф-кровать, комод, раскладные и раскладные стулья и многие другие интересные варианты.
К плюсам можно отнести относительно большие санузел и кухню. Также исчезает узкий ненужный коридор.Такое жилье подойдет людям, которые собирают на дому гостей для одиноких жителей и для молодежи. Минус — отсутствие спальни.
Кухня-столовая
Предполагается, что небольшая спальня отделена от основного пространства, в котором ставятся только кровать и сундук. Остаток комнаты совмещают с кухней. Таким образом, получается кухня-столовая с диваном. В таком помещении вместо обычного стола можно расположить барную стойку. Он послужит продолжением рабочей зоны и сэкономит место.
Выбор спальни особенно актуален для угловых квартир, где два окна составляют одну комнату.
Одну из стен спальни можно сделать диагональной, в которой расположена входная дверь. Параллельно это будет барная стойка, зрительно разделяющая пространство. От входной двери в столовую Шкафы желательно расположить вдоль стены. Это создаст необходимое место для хранения вещей и аксессуаров.
В некоторых дизайн-проектах для такого вида трансформации используются прозрачные перегородки. Это создаст дополнительную легкость и свободу пространству. Для возможности уединения стеклом оборудовать жалюзи или рулонные шторы. Мебель в этом интерьере тоже должна быть из прозрачных материалов, Будь то стекло или пластик. Необычно смотрятся зеркальные поверхности. Они будут «раздвигать» пространство, но уход за ними потребует много времени.
В ванной можно устроить душевую кабину, а на месте отдыха поставить стиральную машину, которая будет на всю длину столешницей. Также вмонтирована и умывальник.
Несомненным плюсом такой планировки является наличие полноценной спальной зоны и зоны отдыха с гостями. Подходит для небольшой семьи, предпочитающей отдыхать дома. Из недостатков можно отметить недостаточность мест для хранения вещей и отсутствие полноценного стола (в случае его замены на барную стойку).
Увеличить количество комнат
Если непременным условием летальности является наличие второй комнаты и изолированной кухни, можно сделать небольшой проходной холл. Особенно это актуально при наличии дополнительного окна (в угловых версиях). Длинная комната будет спальней, в которой можно разместить не только взрослую двуспальную кровать, но и детскую кроватку. Если площадь была выбрана немного больше, в нее может поместиться шкаф.
В этом варианте стену между гостиной и коридором, ведущим на кухню, лучше заменить на раздвижные двери-гармошки по всей ширине.В зависимости от обстоятельств это может быть отдельное место для отдыха или совмещенное с коридором для увеличения комнаты.
Плюсом такой перепланировки станут изолированные кухня и спальня. Он подходит молодым родителям с ребенком и людям, которые не часто приглашают друзей на ужин. Но такая планировка предполагает небольшие узкие помещения с небольшим количеством мест для хранения вещей.
К любому виду перепланировки можно добавить балкон с жилой зоной. Там можно сделать мини-шкаф, поставить вдоль окна балкона высокий барный стол или даже обустроить спальную зону.
Дизайн
Планировка «хрущевка» во всех городах и районах типовая. Поэтому одинаковая мебель расставлена в комнате одинаково. Теперь все по-другому. Большое внимание специалисты уделяют дизайну малогабаритной квартиры. Ведь именно в нем важно учесть все нюансы для удобства и красоты помещения.
Очень популярно зонирование пространства с помощью обоев и паркета.Для этого подбирают модели, объединенные в одной комнате, но визуально разделяющие площадь по детали. Это могут быть обои одного цвета, но с разным рисунком. Можно выкрасить все стены в один цвет, а функциональные зоны выделить обоями с орнаментом. То же самое и с напольным покрытием.
С 1957 года в СССР началось строительство домов нового типа. Произошло это после принятия закона, предусматривающего устранение излишеств в архитектуре и дизайне зданий.Такие дома получили в народе название «хрущевки» (от имени Н.С. Хрущева), а также «хрущевки» (из-за непропорциональной и неудобной планировки комнат, узких пролетов площадок и коридоров, тонких стен, а значит кошмарная шумоизоляция). В этой статье мы расскажем, какой была планировка квартир в хрущевках, рассмотрим типовые серии этих домов, попробуем определить основные минусы и преимущества этих построек.
Типовая серия Хрущевок
Рассмотрим основные характеристики квартир, кроме того, определим особенности всех серий этих домов, построенных за 27 лет.Следует отметить, что хрущевки изначально задумывались как временное жилье. Тогда срок эксплуатации дома составлял 25-50 лет. Но сегодня в таких домах живут люди. К расходу построек можно отнести ужасную теплоизоляцию и шумоизоляцию (зимой холодно, а летом в квартире слишком жарко). Планировка комнат в хрущевке и подъезда тоже не всегда удачная: небольшая кухня, узкие коридоры, не очень часто лифт и вывоз мусора.
К преимуществам этих домов можно отнести относительно невысокую стоимость квартир. Основными преимуществами этих домов также являются классифицированная инфраструктура вокруг них. В основном рядом с хрущевками расположены школы, детские сады, магазины и прекрасная транспортная развязка. Если денег на покупку квартиры мало, то хрущевка — не самое худшее. Сегодня такие дома в городах нашей страны подлежат сносу, а значит их владельцы получают новую квартиру или перепланировку и реконструкцию.
Серия 1-464.
Сразу стоит сказать, что эта одна из самых популярных серий хрущевок в СССР стала именно такой. Дома построены в 1960-1967 гг. Это дом из панелей в пять этажей, иногда встречаются также 3-х и 4-х этажные постройки. В каждой квартире есть балконы и дополнительные кладовые. При этом лифтов здесь не предусмотрено, и жильцам дома приходится спускаться и подниматься по ступеням, что очень сложно людям в возрасте, а также семьям с детьми.В данной хрущевке варианты планировки предусмотрены однотипные — в санузлах совмещены, в подъезде нет общего мусоропровода, а на участке количество квартир 4. 2,5 м — высота потолков, площадь кухни. составляет 5,8 м². Это были квартиры 1-3-х комнатной планировки.
Серия 1-335.
В домах этой серии территория построена в 1963-1967 гг. Это тоже были панельные дома. Такая планировка хрущевки (фото представлено в этой статье) предполагает высоту потолков 2.54 м, в каждой квартире — балкон, санузел совмещенный, а также отсутствие мусоропровода и лифта. Площадь кухни немного больше, чем в предыдущей серии — 6,2 м². На участке также 4 квартиры — 1-3-комнатные. Помимо балконов, в квартирах есть дополнительные встроенные шкафы и кладовые.
Серия 1-434.
Данная серия выпускалась в 1958-1964 гг. Планировка хрущевки при этом была несколько видоизменена в разные годы развития.Например, в 1958 домах в 1-комнатных квартирах жилая площадь составляла 18,6 м², а через год она упала до 18,2 м², еще через год комната была 17,7 м². Причем во всех типах этих квартир площадь жилых комнат варьировалась в сторону увеличения и уменьшения. При этом площадь кухни была постоянной — 5,8 м², так как фактически высота потолков везде была равной 2,5 м. Дома кирпичные, санузлы совмещены, в каждой квартире есть балкон, встроенные шкафы и кладовая.
Серия 1-467
Это последняя серия, построенная в 1959-1969 гг. Дом тоже из блоков с высотой потолка 2,5 м, но планировка кухни в хрущевке оказалась удачнее — с увеличенной площадью 6,6-7,7 м². В каждой квартире были балконы (помимо 1-го этажа). В ранних вариантах домов ванные комнаты — раздельные, затем — совмещенные, мусоропровод тоже отсутствует. К достоинствам квартир этой серии можно отнести возможность перепланировки, а к минусам — смежные комнаты в квартирах.
Правила перепланировки двухкомнатной хрущевки
В том случае, если планировка хрущевки вас не устраивает, и вы хотели бы ее поменять, нужно знать, какие стены в квартире несущие, а они Нельзя касаться актуальных законодательств: они делают дверные проемы, сносят или меняют исходное положение в них.
Решившись на непоследовательную перепланировку хрущевки и избавившись от несущей стены, вы рискуете, что последствия этого будут плачевными.Часто перекрытия просто налетали, иногда это приводит даже к жертвам.
Самостоятельно выявить несущую стену можно, если посмотреть на ее толщину. Эти стены всегда намного толще остальных, которые представляют собой обычное разделение комнат. В основном несущая стена бывает толщиной не менее 50 сантиметров, при том, что все остальное достигается толщиной 15-20 см.
Если все же необходимо провести такую процедуру, как перепланировка хрущевки, а в несущей стене есть огромное желание сделать проем, можно выходить из положения, но надо очень постараться.Необходимо по установленным нормам верхнюю часть проема закрепить железобетонными или металлическими блоками. Второй допустимый вариант проема, который относится к прямой несущей стене, — это замена арки балконного блока.
Варианты перепланировки
Итак, если планировка хрущевки вас не устраивает, можно убрать перегородку между комнатами (если в квартире 3 комнаты) и получить много комфортного пространства, либо сделать трехкомнатная малая однокомнатная, но большая.Убрать между комнатами стену, если она не несущая, не составит особого труда.
Также можно сделать отдельный вход в каждую комнату. Делается это за счет удлинения прихожей. При таком варианте часто приходится жертвовать квадратными метрами комнаты. Кроме того, существует вариант закладки проема в одном месте и переноса его на другую стену или другое место.
Совмещение комнаты и кухни — популярный вариант для создания стильного современного интерьера. Когда-то считалось, что кухню можно изолировать от остальных комнат, но на данный момент это не единственный подход.Часто кухню также объединяют с гостиной. В этом случае это может быть неполная или полная комбинация, все зависит от дизайнерской задумки. В первом случае между комнатой и кухней делается небольшой проем, устанавливается арка или барная стойка. Границы между двумя зонами при полном разделении остаются исключительно визуальными.
Также есть возможность изменить размер ванной комнаты. Часто в двухкомнатном хрущевке встречается совмещенный санузел. Если есть желание разместить душевую кабину, стиральную машину, придется подобрать на кухне или в коридоре несколько квадратных метров (хотя такое решение возможно не в любой квартире — это зависит только от ее планировки) .
Более смелое решение — полная перепланировка. В этой ситуации полностью удаляются не поддерживающие стены. При этом собственники получают абсолютно новое свободное пространство, которое можно полностью разделить на функциональные зоны по собственному желанию. Если нет опыта строительных работ, проект перепланировки нужно адресовать профессионалам. Важно учитывать огромное количество технических моментов.
Перестенники
Это стены в квартире, которые не являются несущими.Если говорить о хрущевках, то там в основном из блоков, периодически из кирпича, а также стены из гипсокартона. При перепланировке, при возведении других стен самым простым материалом считается гипсокартон. Специально для дополнительной звукоизоляции этого современного материала используйте минеральную вату. Следует отметить, что работать с гипсокартоном просто и быстро. Это займет немного времени и финансовые затраты будут ниже.
На что обратить внимание
Нужно смотреть на балкон при перепланировке 2-х комнатной хрущевки.В том случае, если он совмещен с остальными комнатами, поможет немного расширить пространство. Если площадь позволяет, можно превратить балкон в полноценный кабинет.
При этом перепланировка хрущевки может быть частичной или полной. Независимо от выбранного варианта ремонта, необходимо внимательно и не один раз задуматься над любой мелочью. Только тщательный подход к работе позволяет получить функциональное и комфортное пространство.
С 1957 года, после принятия закона, предусматривавшего устранение излишеств в проектировании домов, в СССР строились дома нового типа. В народе такие дома назывались «хрущевки» (от имени Генерального секретаря ЦК КПСС Н.С.Хрущева). Второе название такие дома получили — хрущевки, в основном из-за неудобной и непропорциональной планировки комнат, узких коридоров и пролетов участков, тонких стен и как следствие — ужасной шумоизоляции.В этой статье мы расскажем о том, что характерно для серии хрущевок, постараемся выделить основные достоинства и недостатки этих построек. Особенности планировки будут представлены в виде описаний и фотографий.
Типовая серия хрущевок: основные достоинства и недостатки домов
Давайте рассмотрим основные характеристики квартир и определим особенности каждой серии хрущевок, которые возводились 27 лет. Стоит отметить, что изначально хрущевки предполагали использовать как временное жилье, так и срок строительства от 25 до 50 лет.Но, как известно, в таких домах живут люди и в наше время. К минусам хрущевки можно отнести плохую шумоизоляцию и теплоизоляцию (зимой прохладно, а летом слишком жарко в квартире), не всегда удачную планировку квартиры и подъезда: узкие коридоры, небольшая кухня, отсутствие вывоза мусора и очень часто лифта. К основным достоинствам таких домов можно отнести невысокую стоимость.
К основным достоинствам таких домов можно отнести невысокую стоимость жилья и развитую инфраструктуру вокруг дома.Как правило, недалеко от Хрущева есть детские сады, школы, магазины и отличная транспортная развязка. Если денег на покупку квартиры немного, что-то не самый плохой вариант. Причем такие постройки в Москве и других городах России подлежат сносу, в этом случае собственники получают новое жилье или реконструкцию и перепланировку.
серии 1-464 (1960-1967)
Общий чертеж:
Одна из самых популярных хрущевских серий в СССР — 1-464 (1960-1967).Это панельный дом в 5 этажей, редко встретишь 3- и 4-х этажные дома. Во всех квартирах есть балконы (также дополнительные кладовые), но лифты не предусмотрены, и жильцам дома приходится подниматься и спускаться по ступеням, что тяжело для пожилых людей, семей с маленькими детьми. Санузлы в квартирах совмещены, в подъезде нет общего мусора, а количество квартир на участке — 4. Высота потолков в квартирах 2,5 м2, кухня меньше 6 м2, если точнее — 5.8 м2. Квартиры 1, 2 и 3-х комнатные.
Рисунок — Рисунок:
1-комнатная:
2-комнатная:
3-комнатная:
серии 1-335 (1963-1967)
С 1963 по 1967 г. Территория застроена домами 1-335 серии. Это тоже панельные дома, с высотой потолков 2,54 м., Балконы в каждой квартире совмещены, санузлы, без лифта и вывоза мусора.Площадь кухни чуть больше, чем в предыдущей серии — 6,2 м2, площадь потолков — 2,5 м. На участке расположены четыре квартиры — от 1 до 3-х комнатные. Помимо балконов в квартирах есть дополнительные кладовые и встроенные шкафы.
1-комнатная:
2-комнатная:
серии 1-434 (1958-1964)
Эта серия строилась с 1958 по 1964 год, в разные годы разработки несколько видоизменила планировку квартиры.Например, в домах 1958 года в однокомнатных квартирах площадь жилой комнаты составляла 18,6 м2, а в 1959 году она уменьшилась до 18,2 м2, в 1969 году — комнаты была 17,7 м2. И так во всех типах квартир площадь жилых помещений варьировалась до уменьшения и увеличения. Но площадь кухни осталась неизменной — 5,8 м2, как и высота потолков — 2,5 м. Дом — кирпич, санузлы совмещены, в каждой квартире есть балкон, кладовая и встроенные шкафы.
Картины — чертеж (по годам)
1-комнатная 1958
1-комнатная 1959
1-комнатная 1960
1-комнатная 1961
1-комнатная 1964
2 спальни 1958
2 спальни 1959
2 спальни 1960
2-комнатная 1964
Во времена Хрущева в жилых домах не было совсем хороших квартир.Квадрат очень маленький, планировка не продумана. Главной задачей тех времен было обеспечить каждой семье отдельное жилое пространство. Что касается комфорта проживания, то он вообще не входил в задачу. Преимущество таких квартир в том, что их легко выкупить, так как несущие стены внешние, а внутренние — перегородки, которые можно снести или перенести без снижения несущей способности всего дома. Несмотря на это, необходимо наличие проекта реструктуризации и согласования с соответствующей организацией.Дело в том, что любые изменения в конструкции здания следует регистрировать.
Любое изменение конфигурации стен и перегородок в квартире считается перепланировкой. Что касается несущих стен, то их вообще нельзя трогать. Если есть ненагруженные стены или перегородки, здесь все не так серьезно, но необходимо составить проект, после чего придется его согласовать и только после этого можно приступать к реализации задуманного.
При этом есть варианты переделки, которые не удастся согласовать ни при каких обстоятельствах:
- Расширение площади такого помещения, как кухня, ванная и туалет, возможно только за счет технических помещений.Выше жилых помещений запрещены. В этом случае можно уменьшить площадь коридора, встроенного шкафа, прихожей и т. Д. Поэтому есть спорные варианты некоторых перепланировок. На фото ниже показаны спорные зоны.
Обозначенный красный фрагмент находится практически в коридоре, но в документах БТИ указано, что это жилая зона. Если по этому варианту подать документы на перепланировку, то они не принимаются. Чтобы не ссориться с законом, необходимо предварительно поставить перегородку, выгорающую коридор, и подать проект на увеличение площади ванной комнаты.
Расширяя площадь кухни, делать нельзя:
- Расширять ванную комнату.
- В случае расширения кухни за счет жилой площади, установка сантехнических принадлежностей и кухонной плиты на кухне невозможна.
- Если на кухне есть газ, то его нельзя совмещать с жилым помещением.
Этот пункт можно обойти, если установить двери любой конструкции, в том числе гармонические и двери гармошкой.
Однокомнатная хрущевка: перепланировка
Молодые семьи склонны покупать однокомнатные квартиры. Однокомнатная хрущевка несложно переделать студию в квартиру, что для молодежи отличный вариант. В этом случае избавьтесь от перегородок, разделяющих комнату и кухню, а также прихожую.
В противном случае такая комната, как санузел, не трогается, потому что ее нельзя сдвинуть, если это не первый этаж.
На фото видно, что перепланировка частично коснулась и ванной комнаты, из-за перемещения двух стен на значительное расстояние.Это стена, выходящая в зал, и стена, отделяющая коридор. Благодаря небольшому увеличению площади появилась возможность разместить стиральную машину. В маленьких помещениях всегда не хватает места, когда требуется установить современную бытовую технику. Хоть прихожая и получается не большой, но в комнате достаточно места и можно установить гардеробную.
На другом фото представлен еще один вариант перепланировки 1 комн. Хрущевки. Этот вариант отличается тем, что в них совмещены кухня и коридор.Дверь в комнату сдвинута с подъезда, что позволило более оптимально использовать жилое пространство. В результате такой конструкции в коридоре появилось место под шикарный встроенный шкаф. Это не повлияло на функциональность кухни, и ее площадь увеличилась на 0,2 квадратных метра.
В последнее время многие арендаторы практикуют еще один способ увеличения жилой площади — совмещение лоджий и балконов. Но для этого нужно тщательно произвести утепление стен балконов и лоджий, а также провести там отопление.В результате вы можете получить другую комнату с оптимальной температурой, где можно разместить, например, рабочую тетрадь.
Есть еще один вариант перепланировки однокомнатной хрущевки, находящейся в кирпичном доме. Здесь очень маленькие площади ванной и кухни, но перегородки ставятся стандартно.
В этом случае желательно отказаться от ванны в пользу душевой кабины. Это позволит оптимизировать полезное пространство в ванной, разместив там вилку и стиральную машину.При этом одна из стен скошена, а площадь кухни существенно не увеличивается, а увеличивается, хотя площадь прихожей несколько уменьшается.
Жилую площадь можно увеличить за счет расширения балкона, утеплив его соответствующим образом. На балконе можно установить шкаф и рабочий стол. Подобная перепланировка вполне актуальна, если семья состоит из пяти человек: 3 детей и 2 взрослых. При этом желательно установить одну двухъярусную детскую кровать.На следующем фото вы можете увидеть аналогичный вариант переделки жилой квартиры.
К сожалению, не у всех есть квартира-студия, так как не все воспринимают ванную комнату, где совмещены ванна и туалет. Многим не нравится отсутствие стен, когда нельзя сидеть на кухне незамеченной для окружающих, тем более что это актуально в присутствии детей, да еще и в однокомнатной квартире.
В этом случае перепланировка осуществляется переносом разделов в зависимости от приоритетов.Боковую стену прихожей нужно сдвинуть в сторону комнаты, а лицевую стену сдвинуть, почти вплотную к двери в ванную. После таких действий увеличивается площадь прихожей и теперь появилась возможность установки в прихожей встроенного шкафа и гардеробной.
Естественно, площадь комнаты уменьшается, поэтому недостаток площади придется компенсировать за счет кухни. Несмотря на это, после того, как стены приблизили к двери ванной, образовалось место для холодильника.В результате такой перепланировки обеденная часть кухни переехала в комнату. Для оптимизации пространства следует установить раздвижные двери или двери-гармошки.
При этом комната получила М-образную форму, в которой можно установить перегородку для разделения комнаты на взрослую и детскую зоны. По такому же принципу из однокомнатной квартиры можно сделать двухкомнатную. Это имеет серьезное значение в присутствии детей.
Возможен еще один вариант перепланировки 1 комнатной квартиры, но только с другой первоначальной планировкой.В этом случае переделка минимальна и сводится к обустройству перегородки из гипсокартона. Его устанавливают так, чтобы он занимал не более половины зазора, чтобы освещение было доступно во второй части.
Как вариант предлагается перепланировать угол однокомнатной хрущевки, в квартиру студию с выпуском спального места. В этой части квартиры поместится только кровать и шифоньер, но есть один существенный плюс: спальня изолирована.
Однокомнатная хрущевка: Переделка
В строительстве тех лет двухкомнатных квартир намного больше, чем однокомнатных, но у них те же проблемы: небольшие площади и не продуманное расположение комнат, с наличием. проезжих помещений.Если вы переносите стены, большинство проблем оказывается решенным. Например, можно разделить смежные комнаты, после чего из двухкомнатной можно сделать как двухкомнатную квартиру. Для этого достаточно смонтировать еще одну перегородку, отделяющую комнату от коридора. В результате появляется дополнительная полезная площадь, где можно разместить гардеробную и кладовую. Полученное таким образом второе помещение длиннее и уже, разделено на две части перегородкой из гипсокартона.
На фото ниже представлен второй вариант неудачной планировки жилых пространств того времени. Здесь, чтобы попасть во вторую комнату, вы должны пройти через первую. Планировка настолько неудачна, что не только появляются небольшие участки, но и появляются мертвые зоны, что искажает функциональность помещений. Иногда в конце второй комнаты находится кладовая, которую невозможно использовать в полной мере.
После переделки этого варианта ванна приобрела квадратную форму, а прихожую соединили с первой комнатой.В данном случае он служит гостиной, из которой оформляется вход на кухню. Следующее, более дальнее пространство разделено на две спальни. Перегородка между двумя спальнями смонтирована таким образом, чтобы осталось место для небольшой гардеробной одной и другой спальни.
Обычная двухкомнатная хрущевка в панельном доме, есть возможность превратить студию в квартиру, совмещая гостиную и кухню. Основная задача такой переделки — сдвинуть входные двери.Благодаря этому большая прихожая будет служить гардеробной. При этом совмещены туалет и ванна, а кухня и гостиная — за счет частично разобранной перегородки.
При желании вторую комнату можно разделить на две части, за счет перегородки из гипсокартона, которая позволит разделить рабочую и спальную зоны. Чтобы свет проникал в спальню, перегородку достаточно поднять на высоту не более 1.5 метров.
Достаточно интересный вариант переделки 2-х комнатной квартиры на 3-х комнатную. Здесь прихожая имеет небольшой скос, что позволило увеличить площадь ванной, а также частично убрана перегородка, которая устанавливается между кухней и комнатой. Вторая комната разделена на 2 части, площадь которой увеличивается за счет кладовой и навесного шкафа. В результате образовалось 2 спальни, а поскольку квартира угловая, то в каждой из спален свое окно.
Коридор принял интересную форму, так как его стены расположены по диагонали. В итоге получается неплохой вариант, хотя функциональность коридора значительно снижается.
Трехкомнатные хрущевки: меняя расположение комнат
хрущевки серии 11-57.3.2 отличаются очень маленькими размерами туалета и ванной. Исходя из этого, переделка квартиры просто необходима, если учесть, что на планете уже 3 тысячелетие и наличие современной сантехники и бытовой техники говорят о такой необходимости.Для оптимизации жилого пространства необходимо убрать простоту между ванной и туалетом. Часть коридора, которая примыкает к санузлу, заполнена стеной, где в ванную комнату ставятся двери. Единственная проблема — усиление гидроизоляции в этой части, где раньше был коридор.
Первоначальная планировка не позволяла установить шкаф. В небольшом отрезке коридора, который переместился под ванную комнату, находился небольшой шкаф, но его размеры настолько малы, что в нем можно спрятать только мелочи.Поэтому вам придется переместить стену одной из спален так, чтобы шкаф-купе разместился на свободном месте.
Чтобы совместить кухню и гостиную, нужно избавиться от части стены. При этом необходимо усилить соответствующие несущие стены и перекрытия. Так как плита на кухне газовая, то нужны дверцы. Как вариант, можно установить раздвижные.
Возможен другой вариант ремонта, позволяющий увеличить площадь санузла, а также превратить в гостиную-столовую какое-то помещение, в которое можно попасть на кухню.При этом нужно сформировать две спальни.
Для этого убирается простота между ванной и туалетом, а часть коридора закрывается под санузел. Теперь вход на кухню будет со стороны гостиной, с противоположной стороны гостиной образуется вторая спальня.
Что касается дверного блока, размещенного во второй спальне, то его необходимо демонтировать, а проем проложить.
Следующий вариант перепланировки предназначен для увеличения полезной сазели и площади кухни.Что касается ванной, то ее расширяют классическим способом: убирают перегородку между ванной и туалетом, а также вешают стену. Кухня расширяется за счет комнаты. Такое решение позволяет сформировать место для отдыха, где можно установить диван и телевизор.
Оказывается, таким образом можно разделить проходные комнаты. Хотя площадь уменьшилась, но они стали более функциональными. На освобожденных площадках можно разместить гардеробные комнаты.
Хрущевка четырехкомнатная: Переделка
Это настолько неудачная планировка, что с увеличением количества жилых помещений проблем становится все больше.Опять же, наличие маленькой кухни и маленькой ванной с проходными комнатами усугубляет общую картину. На фото ниже один из самых невзрачных вариантов. Здесь показано, что было до переделки.
Несмотря на то, что эта квартира имеет относительно большой коридор, он (прихожая) используется не полностью, а существующий нормальный угол занимает кладовая.
Проблема связана еще и с тем, что в коридор выходит семь дверей.Предлагается вариант переделки, когда заменяются все комнаты правильной формы, типа квадрата. Такой подход позволяет легче использовать функциональность квартиры в целом. Две комнаты используются под столовую и под гостиную, а две спальни остаются незатронутыми. Вход в гардеробную очага из коридора.
Ванна и туалет остаются несопоставленными, но их площадь увеличивается за счет выравнивания стен. Участок, который ранее занимал коридор, требует усиления гидроизоляции.
Заключение
Хрущев давно обозначил себя не только с технической точки зрения, но и с моральной. К тому же современная планировка учитывает недостатки прошлого и не допускает таких просчетов. Те, кто до сих пор живет в хрущевке, каждую минуту и каждый месяц задумываются над тем, как отремонтировать ремонт, чтобы избавиться от этих крохотных кухонь, туалетов и бань, а также проходных комнат, где полезная площадь маленьких комнат не оптимально.
При этом стоит учитывать, что есть еще одна проблема, не менее серьезная — организация проекта перепланировки и его согласование. К большому сожалению, чиновники не хотят встречаться с хозяевами хрущевок. Подобное решение получить очень сложно и хлопотно, а то и очень дорого. В связи с этим многие владельцы квартир самостоятельно улучшают свою жизнь и перематывают свои ведьминские квартиры. При определенных условиях, когда вам нужно продать квартиру, вам придется заплатить штраф за самопроизвольную перепланировку.Если все будет сделано без нарушения технологии, паспорт на квартиру переделают, естественно, платно.
Но здесь кроется другая проблема, связанная с тем, что некоторые собственники квартир при перепланировке все же нарушают требования и нормы, что иногда приводит к плохим последствиям.
Исходя из этого, можно сделать вывод, что любую работу желательно согласовать с соответствующими организациями и получить разрешение, иначе можно поступить по закону, что повлечет административную или уголовную ответственность.


Однако и такое жилье можно без особого труда преобразовать и сделать очень уютным.