Перепланировка хрущевки 3 комнаты: Перепланировка 3-х комнатной хрущевки: обзор способов
фото и схемы лучших вариантов планировки, советы по законной перепланировке
Дизайн трехкомнатной квартиры типа «Хрущевка» не может похвастаться удобной планировкой. Часто она не способствует даже удобному проживанию, так как очень тесная, не вместительная, несмотря на нормальную площадь.
Любой может самостоятельно разработать перепланировку квартиры в хрущевке по собственным планам.
Содержимое статьи:
Виды планировки
Есть несколько основных видов типичной панельной трехкомнатной квартиры:
- Распашонка. Состоит из одной большой комнаты и 2 поменьше. Самая неудачная планировка трехкомнатной квартиры. Изменениям практически не поддается.
- Книга. 2 большие комнаты и 1 маленькая. Подходит для создания индивидуального плана, но требует затрат квадратных метров.
- Трамвай. Дизайн 3 комнатной квартиры похож на трамвайный проход. Часто все 3 комнаты расположены одна за другой. При изменении плана нужно ставить специальные перегородки.

- Дизайн трехкомнатной квартиры 60 кв м. Все комнаты находятся в изоляции друг от друга, не соединены друг с другом. Вариант наиболее удобный, так как могут не потребоваться генеральные меры.
Варианты перепланировки
Перепланировка 3 х комнатной хрущевки – процесс многоступенчатый и может происходить в разных комнатах. Превратить 3 отдельных помещения в 1 не получится, но соединить близлежащие можно, что поможет увеличить пространство и квартиру пригодной для жилья.
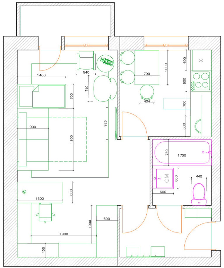
Объединяем кухню и гостиную
Самая распространенная модификация, так как гостиная и кухня часто расположены рядом.
Это решает сразу несколько проблем:
- Увеличивает пространство. Во многих хрущевках обе эти комнаты имеют скромную площадь. Соединив их, можно уравновесить размер и уместить больше мебели, техники и аксессуаров.
- Простота демонтажа перегородки. Между гостиной и кухней часто расположена тонкая стенка, не имеющая несущей способности.
Строится из кирпича или газобетона, поэтому снести ее можно буквально двумя ударами кувалды.
В общей сложности существует несколько видов изменения кухни в хрущевке.
Классика
Снос перегородки – это наиболее простой способ одновременного расширения маленькой кухни в хрущевке и повышения просторности зала.
Стенка не выполняет несущей функции и распространяется на всю длину столовой, как на фото.
Студия имеет следующие преимущества:
- Два окна значительно повышают количество естественного освещения. Этот подход позволит поставить в комнате солнцелюбивые растения, даже если дом на северной стороне.
- Помогают добавить новые предметы. Например, на месте прежней перегородки устанавливается поперечная барная стойка, поставить вешалки для бокалов.
- Открывают дорогу для большинства дизайна. Лофт, сканди, кантри, классицизм – все эти стили требуют простоты и эта конфигурация – лучший способ.

Частичное соединение
В этом случае часть стены, либо оставляют, либо достраивают. Перепланировка квартиры этого толка подразумевает декоративный подход и стена может выполнять художественные или прикладные функции.
Декоративное направление:
- Оставшаяся перегородка может быть оформлена с помощью рамок с фотографиями, постерами к фильмам, другими аксессуарами.
- Неровное оформление кирпича – частый прием в лофте. Сколы могут создаваться искусственно или оставаться после демонтажа.
Прикладное направление:
- Частая проблема после сноса стены – нет места для телевизора. Так как удобнее его вешать на перегородку, а ее отсутствие не даст правильно разместить диван, можно установить панель на остаточной стене.
- Здесь возможно установить полочки или сделать стеллаж, что позволит значительно повысить мобильность и комфорт помещения.
Расширяем ванную
Квартиры в хрущевке часто оборудованы малым санитарным узлом.
В нем банально некомфортно принимать душ и заниматься утренним приготовлением перед работой. Более того, иногда в них даже невозможно уместить длинную ванну.
Выход – расширение санузла или повышение компактности, что позволит значительно улучшить качество комнаты.
Всего для этого нужно сделать:
- Демонтировать стенку между туалетом и ванной. Она изготовлена из обычного кирпича или газобетона (в редких случаях), что позволяет ее убрать обычной кувалдой или перфоратором в режиме долбления. Она не несущая и укреплять полученный проем не нужно.
- Заменить ванну на кабинку. Душевые кабины намного мобильнее и занимают в 2 раза меньше места. Тем более, сейчас в продаже есть стеклянные, пластиковые, металлические кабины, любого размера и типа.
- Визуально увеличить пространство. Перепланировка панельной может быть исключительно визуальной. Для этого нужно демонтировать часть перегородки над дверным проемом. Это зрительно поднимет потолок и сделает утренние процедуры более комфортными.

- Присоединение новых территорий. Часто планировка трехкомнатной квартиры предполагает прилегающую кладовую, нишу или встроенный шкаф к санитарному узлу. Объединив их, можно получить достаточно пространства для расширения. Важно, что на новой площади придется заново переоборудовать гидроизоляцию, провести сантехнические коммуникации и мебель. Но получить разрешение на такую перепланировку нельзя, если расширение производится за счет жилых территорий.
Спальня
Перепланировка хрущевки редко затрагивает спальню. Основная причина – ее размер не влияет на качество сна и отдыха. Это место интимное, от чего кардинально проводить перепланировку хрущевки не потребуется.
Но можно сделать следующие манипуляции:
- Зонирование.
Кроме сна, часто в этой комнате располагается компьютер или целое рабочее место. Поэтому возможно просто произвести косметический ремонт и сделать отдельное зонирование для каждого элемента. Это делается с помощью контрастных цветов, фотообоев. - Отделение спальной зоны от рабочей. Лучше всего воспользоваться специальными декоративными перегородками из стекла, пластика или древесных плит.
Можно посмотреть план 3 комнатной квартиры, если планируется увеличение спальни. Если она окружена несущими стенами, их демонтаж невозможен на законодательном уровне.
Увеличиваем площадь за счет балкона
Зачастую балкон – это дополнительные квадратные метры, используемые не по назначению. Устраивая там кладовку или склад, помещение серьезно урезается, но небольшой ремонт позволит значительно расширить пространство.
В хрущевках часто мизерные столовые, в которые вмещается короткий гарнитур и стол. Перепланировка кухни с помощью балкона позволит прибавить 2-5 квадратных метров, новую мебель, дополнительные аксессуары и технику.
В дополнение, комната будет лучше освещаться благодаря широкому окну.
Если балкон примыкает к залу, то дополнительное расширение – это способ уместить длинный диван и больше мебели. Редко встречаются квартиры хрущевского типа обладают таким сочетанием комнат, но если оно есть – расширение стоит использовать. Как правило, дополнительно такие балконы обладают, либо угловой конструкцией, либо выходом на кухню.
Примыкание к спальне поможет создать место для работы, установить большой шкаф купе, если ранее площади не хватало.
в панельном доме и в кирпичной «хрущевке» площадью 56 кв. м, варианты для «брежневки»
Каждый человек мечтает о просторном, привлекательном и комфортабельном жилье, однако очень часто желания не совпадают с возможностями.
Отличительной особенностью подобных жилищ является небольшое количество свободного пространства и достаточно неудобная планировка, поэтому необходимо прикладывать огромное количество усилий для того, чтобы сделать квартиру пригодной для жизни.
Трёхкомнатные квартиры в таких домах пользуются наибольшей популярностью, так как они достаточно дешевые, чем в 9-этажных вариантах, но при этом отличаются небольшим количеством квадратных метров.
Особенности
Отличительной особенностью трёхкомнатной квартиры в «хрущёвке» является небольшая площадь, которая очень редко превышает 60 квадратных метров. Кроме того, здесь достаточно низкие потолки и тесные коридоры, что существенно усложняет процесс перепланировки.
Некоторые квартиры включают в себя балконы, кладовки и другие антресоли, что упрощает процесс воплощения множества дизайнерских идей. Главная отличительная особенность и преимущество таких квартир в том, что здесь нет внутренних несущих перегородок, а это позволяет достаточно быстро преобразить пространство и сделать его максимально функциональным.
Вне зависимости от того, какая именно стена деформируется или убирается, это называется перепланировкой. Даже если данные стены не являются несущими, всё равно придётся получить разрешительную документацию в государственных органах. Кроме того, стоит помнить, что нельзя проводить некоторые ремонтные и отделочные работы вне зависимости от особенностей планировки.
Например, не допускается увеличивать размеры кухни или санузла за счет жилых комнат.
Для того чтобы получить всю необходимую разрешительную документацию, нужно будет подать в государственные органы план квартиры и технический паспорт, а также проект перепланировки, который будет включать в себя чёткий план проведения всех демонтажных работ.
Лучшие варианты
Подбор наиболее оптимального варианта перепланировки трехкомнатной квартиры зависит от её особенностей, а также пожеланий и возможностей владельца.
На сегодняшний день существует несколько стандартных вариантов, которые преображают квартиру до неузнаваемости и позволяют сделать её максимально уютной и комфортной. Среди наиболее популярных можно выделить следующие.
- Совмещение гостиной и кухни. При проведении подобных работ нужно будет снести стену, которая находится между комнатами, а дверной проём полностью закрыть. Что касается кухонной перегородки, то она или удаляется полностью, или же превращается в арку, которая ведет в гостиную. Некоторые дизайнеры также предпочитают использовать для данных целей стеклянные раздвижные системы, которые позволяют поделить комнату на несколько функциональных зон, визуально расширяя при этом пространство.
- Применение подсобных помещений. В таких трехкомнатных квартирах основным помещением является гостиная, поэтому в спальне всегда чувствуется нехватка свободного места.
Избавиться от этой проблемы можно при помощи использования дополнительного пространства, роль которого обычно играет подсобное помещение.
Его можно превратить в шкаф или же часть комнаты, отделив при помощи штор. Таким образом, в спальне удастся создать небольшую рабочую зону.
- Избавление от длинных коридоров.
Одним из недостатков трёхкомнатных квартир в хрущевках являются узкие, но при этом достаточно длинные коридоры. Из-за подобной планировки в них нельзя установить мебель, поэтому прихожая не несет в себе никакой функциональной нагрузки. Именно поэтому в процессе перепланировки очень часто коридоры сокращаются в пользу ванной или туалета – благодаря такому решению удаётся установить стиральную машину или небольшой шкаф.
- Перепланировка балкона. Если планируется соединить балкон с кухней или гостиной, то в первую очередь необходимо позаботиться о его утеплении. Стена сносится полностью, в результате чего освобождается достаточно большое количество места для установки стола, шкафа и других предметов интерьера. Если подоконник убрать не получается, то на его месте можно сделать небольшую барную стойку или же тумбу под телевизор.
Специалисты советуют проводить общую стяжку пола после объединения, чтобы он был максимально ровным и комфортным.
- Разделение. Как ни странно, но иногда бывают ситуации, когда в трёхкомнатной квартире находится одна очень большая комната, в результате чего можно произвести её «распил». Это будет идеальным решением в случаях, когда в квартире проживает слишком большое количество людей, поэтому появляется необходимость получить 4 комнаты. Следует отметить, что разделение можно провести только в том случае, если каждая из полученных комнат будет иметь свой оконный проём. А в некоторых квартирах окна располагаются таким образом, что провести разделение невозможно с технической точки зрения.
Отличительной особенностью старых трёхкомнатных квартир являются большие оконные рамы, которые забирают немало места. Именно поэтому одним из способов расширить проемы станет использование новых стеклопакетов, которые отличаются минимальными габаритами и максимальной функциональностью.
Кроме того, получить оригинальный интерьер можно при помощи использования панорамных окон, которые устанавливаются от пола до потолка. Подобный дизайнерский прием позволит обеспечить квартиру необходимым количеством естественного света.
При небольших размерах туалета и ванной можно провести их объединение. Несмотря на некоторые неудобства, которые несет в себе данный метод, он позволит установить в помещении мебель или стиральную машину.
Также при необходимости можно убрать ванную и заменить её душевой кабинкой, которая не только отличается небольшими габаритами, но при этом может похвастаться замечательной функциональностью.
Следует отметить, что перепланировка в трехкомнатной квартире не очень поможет, если помещение будет захламлено большим количеством мебели.
Именно поэтому здесь рекомендуется использовать модульные системы и трансформеры, которые отличаются невероятной функциональностью и занимают при этом минимум места.
Отличным решением для подобных квартир является оформление в стиле минимализм, который предполагает использование только самых необходимых предметов интерьера.
Поэтому такое помещение выглядит достаточно стильно, оригинально и привлекательно. Отделывать помещение лучше в бежевых или светлых тонах, которые позволяют визуально расширить пространство и сделать его более легким и свежим.
Красивые примеры
- Дизайн 3-комнатной «брежневки» в кирпичном доме на 5 этажей. Кухня увеличена за счет свободного пространства в коридоре.
- Пример создания 2-комнатной квартиры из «трешки» на 56 кв.
м в панельном доме, которая смотрится очень современно и стильно.
Идеи перепланировки трехкомнатной хрущевки — Сделай сам
Перепланировка квартиры, кардинальный шаг, для увеличения полезной площади. Ведь какими бы приемами визуального увеличения пространства вы не пользовались, например с помощью зеркал, выкрасив стены в белый цвет, эти приемы, как говорится «отдыхают», перед отбойным молотком и сносом стен.
Этапы работ и готовые примеры перепланировки
Самым главным недостатком трехкомнатной квартиры в хрущевке, конечно является ее минимализм, в плохом смысле данного слова. Все мы прекрасно знакомы, с крошечными санузлами и кухнями, коридорами, и комнатами данных помещений.
Объединяем кухню с гостиной
Поэтому, когда речь идет о перепланировке, в первую очередь, это касается кухни и санузла.
Убрав не несущую стену на кухне, в 99 случаях из 100, вы объедините ее с гостиной.
Дизайн кухни совмещенный с гостиной, имеет неоспоримые преимущества, помимо расширения маленького кухонного пространства, у вас еще появляется смежная между гостиной и кухней зона, которую вы к примеру. можете задействовать под небольшую столовую. Единственное о чем стоит побеспокоится, про мощную вентиляцию, чтобы не всегда приятные запахи при приготовлении пищи, не попадали в жилую зону.
Перепланировка санузла
Объединение туалета и ванной комнаты, единственный вариант, после которого, можно довольно комфортного пребывать в данных помещениях.
Это я могу сказать основываясь на своем десятилетнем опыте проживания в трехкомнатной хрущевке.Никогда не забуду, сколько мучений при ремонте туалета, мне доставила укладка кафельной плитки. Помимо того, что я не профессиональный плиточник, на площади 1 кв.м, приходилось за каждой плиткой выходить в коридор, ведь в туалете нельзя было поставить даже ведро с раствором.
Среди типичных хрущевских построек, наиболее часто встречаются планировки:
- «Распашонки» — самые маленькие трешки, с общей площадью 42 кв. и жилой 32 кв. м. данные квартиры с большей правдоподобностью, можно отнести к двушкам.
- Серия 1605-5. Не на много больший, за предыдущий, вариант трехкомнатной хрущевки — 54 и 43 кв.м соответственно.
- Трешка серии 1 — 510. Более просторный вариант, но расположение комнат не удобное.
- Самой большой площадью, может похвастаться трехкомнатная хрущевка с абревиатурой К — 7. Вам сказочно повезло, если ваша бабушка, жила именно в такой квартире. 63 метра общей и 47 квадратных метра полезной площади и удобным расположением комнат.
Итак, прежде чем прибегнуть к помощи грубой силы, необходимо иметь на руках, план изменений в проекте вашей квартиры, заверенный лицензированной проект — компанией и утвержденный Архитектурным бюро, либо иной государственной организацией, вашего города.
Дизайн трехкомнатных хрущевок фото
Понравилась статья? Подпишитесь на канал, чтобы быть в курсе самых интересных материалов
ПодписатьсяПерепланировка хрущевки 3 комнаты смежные варианты: фото и видео
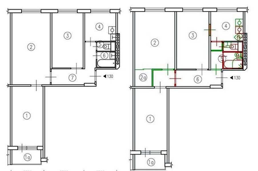
Трехкомнатные квартиры хрущевской постройки, имея внушительную площадь 73-74 кв. метра, отличаются бестолковыми планировками. Темные длинные коридоры, маленькие кухни и санузлы, неудобное расположение комнат причиняют хозяевам массу неудобств. Решение этих проблем – полная перепланировка хрущевки – 3 комнаты можно превратить в четыре, ванную объединить с туалетом, кухню увеличить за счет смежного помещения. В этой статье описываются нюансы проведения подобных ремонтных работ.
Характерные особенности трехкомнатных квартир.
«Хрущевки» задумывались как временное жилье пониженной комфортности, поэтому современный человек находит в них массу недостатков:
- низкая высота потолка;
- маленькая площадь помещений;
- объединенные тесные санузлы;
- наличие проходных комнат;
- узкий несуразный коридор.

Однако перепланировка трехкомнатной квартиры в панельном доме, требующая сноса стен, будет производиться с одним веским преимуществом – отсутствием внутренних несущих перегородок, что значительно упростит переделку жилища с юридической точки зрения.
Способ реорганизации старого жилья во многом зависит от изначального расположения жилых и нежилых помещений:
- одна просторная и две крошечных комнаты;
- две смежные комнаты больших размеров, плюс отдельно стоящая маленькая;
- спальня, зал и детская расположены двумя рядами – по обе стороны коридора;
- три полностью изолированные комнаты.
Одно из помещений часто оборудовано кладовкой – его разумнее использовать как спальную, превратив кладовой отсек в гардеробную. Самая маленькая комната традиционно выделяется ребенку. Если детей двое-трое, тогда, наоборот, – они получают самое большое помещение.
Возможности переделки
Владельцы типовой 3 х комнатной квартиры, задумав преображение своего жилья, обычно идут по одному из стандартных путей:
- Создание объединенной кухни-гостиной.
Такой вариант предусматривает полную заделку дверного проема, снос стены между кухней и залом, дополнительно – расширение санузла путем присоединения бывшего прохода к кухне. Кухонную перегородку можно убрать полностью или обойтись оформлением широкого арочного прохода, ведущего на территорию гостиной. Первый вариант подразумевает применение других приемов зонирования: прозрачные раздвижные системы, предметы мебели, использование разных облицовочных материалов, возведение подиума.
Важно! Жилищное законодательство РФ запрещает объединять жилые помещения с кухнями, оборудованными газовыми плитами. Обойти это ограничение можно двумя способами: заменить газовую варочную поверхность электрической либо разделить зоны перегородкой с плотно закрывающейся дверью.
- Расширение кухонной территории путем присоединения лоджии. Образовавшиеся дополнительные 2-3 метра используют под рабочую зону – устанавливают там холодильник, разделочные столы, шкафы.
Стенки и полы балкона необходимо качественно утеплить, бетонную широкую конструкцию подоконника можно переоборудовать, соорудив из нее барную стойку или полноценный кухонный стол; - Объединение одной из комнат и примыкающей к ней лоджии – третий способ преображения «хрущевки». Разделяющую их стену сносят полностью или частично, оставляя подоконный простенок нетронутым. Во втором случае часть стены декорируют, зрительно отделяя небольшую часть комнаты, устраивают там уютную диванную зону, своеобразный кабинет, библиотеку, зимний сад, тренажерный уголок.
Важно! Инженеры рекомендуют после объединения балкона с любым другим помещением квартиры делать бетонную стяжку по всей площади пола. Таким образом повышается устойчивость конструкции, увеличившей теперь свою функциональность.
- Создание однорядной планировки. Понадобится разрушить стену между кухней и смежной комнатой.
Получившееся пространство расширяют далее, убирая перегородку между следующей комнатой. Таким образом, перепланированная территория представляет собой огромную студию – здесь находятся зоны приготовления пищи, столовая, место совместного семейного досуга, приема гостей. Такое объемное многофункциональное пространство требует продуманного зонирования, освещения, тщательного подбора стиля и декора; - Соединение двух смежных комнат, одна из которых чаще всего проходная. Такого рода перепланировка 3 комнатной квартиры хороша для небольших семей, ее результат – два достаточно просторных жилых пространства.
Важно! Чтобы ограничить частную территорию членов семьи в квартире с длинным коридором, дверь между соседствующими гостиной и спальней можно заблокировать, замаскировать, исключить ее использование. Когда из крайней комнаты нет выхода в коридор, его продлевают до наружной стены и пробивают необходимый проем.
- Разделение самого большого помещения на два раздельных особенно выигрышно при наличии двух окон.
Отличный способ получить рабочий кабинет или отселить одного из детей. Предпочтительнее «распиливать» гостиную, она самая крупногабаритная. Кроме того, ее можно немного расширить, переместив стену между залом и территорией коридора. Бонусом будет некоторая оптимизация пространства прихожей, а комната приобретет нишу, куда можно поместить диванчик, стол, домашний кинотеатр. Зал делят полноценной перегородкой из гипсокартона, раздвижной конструкцией из стекла, высоким шкафом; - Все перечисленные выше варианты перепланировки может сопровождать процедура совмещения ванной с туалетом. Получившийся санузел все еще будет достаточно скромным, однако появится возможность разместить внутри всю желаемую сантехнику, предметы мебели, стиральную машинку, не «съев» этим весь метраж.
Документальное оформление
Капитальная перепланировка 3 х комнатной хрущевской квартиры требует согласования с жилищной инспекцией. Именно поэтому процесс переделки рекомендуют доверять проектным бюро.
Юристы, архитекторы, дизайнеры специализирующихся на подобных работах компаний имеют знания, опыт и связи, помогающие наиболее грамотно подойти к ситуации, быстро получить разрешения, согласовать планируемый ремонт.
Официально разрешительные документы выдаются жилищной инспекцией при наличии всех требуемых бумаг:
- схемы квартиры, ее технического паспорта;
- готового проекта будущего жилища;
- свидетельства о собственности;
- допусков от БТИ, МЧС, УК, пожарной службы, СЭС, архитектурного управления, других учреждений.
Характер перепланировки 3х комнатной квартиры определит, какие дополнительные сведения понадобятся. Например, при реконструкции кухни и туалета запрашиваются схемы, показывающие системы водоснабжения, канализации, вентиляционные, гидроизоляционные системы.
Выбор стиля
Характер декорирования нового интерьера не обязательно должен быть единым. Разные зоны объединенного пространства можно оформить близкими по духу, гармонирующими цветовыми палитрами, выбрать для них один стиль.
Дальняя, изолированная комната может кардинально отличаться, иметь совсем другое, неожиданное направление.
Опираться следует на общие правила декора:
- обширные темные тона уместны в крупных помещениях;
- светлые пастельные, холодные оттенки зрительно раздвигают стены;
- много света, зеркала, горизонтальные полоски, мелкий орнамент разворачивают пространство;
- практически любой стиль основан на принципе «минимум предметов, максимум функциональности»;
- эффектно смотрятся разноуровневые полы и потолочные покрытия, особенно в объединенных пространствах, но не забывайте, что натяжные (как и гипсокартонные) потолки укорачивают комнату,
Большая квартира дает повод воплотить множество идей, реализовать самые смелые задумки, создать эргономичное и вместе с тем уютное пространство.
Пользуйтесь электроприборами так же, как раньше, а платите в 2 раза меньше!
Вы сможете платить за свет на 30-50% меньше в зависимости от того, какими именно электроприборами Вы пользуетесь.
Читать далее >>
изданий «Хрущевские воспоминания» Никиты Хрущева
изд. «Хрущевские воспоминания» Никиты ХрущеваНикита Хрущев Впервые опубликовано 1 января 1970 г.
Опубликовано 1 января 1970 г. Компания Little, Brown & Company (Бостон / Торонто)
1-й, Твердая обложка, 639 страниц
ISBN:
0316831409 (ISBN13: 9780316831406)
Язык издания:
английский
Средний рейтинг:
4.
01
(Оценок: 184)
Книга оценок ошибок. Обновите и попробуйте еще раз.
Оценить книгу
Очистить рейтинг
Опубликовано 2 декабря 1971 г. Андре Дойч
Первое издание (Великобритания), твердый переплет, 639 страниц
ISBN:
0233963383 (ISBN13: 9780233963389)
Язык издания:
английский
Средний рейтинг:
3.
78
(Оценок: 9)
Книга оценок ошибок. Обновите и попробуйте еще раз.
Оценить книгу
Очистить рейтинг
Опубликовано компании Little, Brown And Company
Твердая обложка, 634 стр.
ISBN:
1135429758 (ISBN13: 9781135429751)
Средний рейтинг:
0.0 (0 оценок)
Книга оценок ошибок.
Обновите и попробуйте еще раз.
Оценить книгу
Очистить рейтинг
Опубликовано 1971 г. от Sphere Books
Мягкая обложка, 616 страниц
ISBN:
0722153244 (ISBN13: 9780722153246)
Язык издания:
английский
Средний рейтинг:
0.0 (0 оценок)
Книга оценок ошибок.
Обновите и попробуйте еще раз.
Оценить книгу
Очистить рейтинг
Опубликовано 1970 г. автор: Sugar Editore
Твердая обложка, 640 страниц
Язык издания:
Итальянский
Средний рейтинг:
4.33 (3 оценки)
Книга оценок ошибок. Обновите и попробуйте еще раз.
Оценить книгу
Очистить рейтинг
Опубликовано 1971 г. компании Bantam Books
Мягкая обложка для массового рынка, 717 страниц
Язык издания:
английский
Средний рейтинг:
3.
00
(1 оценка)
Книга оценок ошибок. Обновите и попробуйте еще раз.
Оценить книгу
Очистить рейтинг
Опубликовано компании Little, Brown and Company
Твердая обложка
Язык издания:
английский
Средний рейтинг:
0.0 (0 оценок)
Книга оценок ошибок. Обновите и попробуйте еще раз.
Оценить книгу
Очистить рейтинг
С возвращением.
Подождите, пока мы войдем в вашу учетную запись Goodreads.
Государственный деятель, 1953-1964 Сергей Хрущев
- Домой
- Мои книги
- Обзор ▾
- Рекомендации
- Награды Choice Awards
- Жанры
- Подарки
- Новые выпуски
- Списки
- Изучить nouk6pq8sg.1.0.2.0.2.0.1.0.0.7″> Биография
Новости и интервью 9176 - Бизнес
- Детский
- Христиан
- Классика
- Комиксы
- Поваренные книги 0:$Ebooks»> Электронные книги
- Фэнтези
- Художественная литература
- Графические романы 9014 9014 Историческая музыка
- Музыка 9014 Ужасы
- История
- Тайна 0:$Nonfiction»> Документальная литература
- Поэзия
- Психология
- Романтика
- Наука
- Научная фантастика
- Самопомощь
- Спорт
- Триллер nouk6pq8sg.1.0.2.0.2.0.1.0.1.0.1:$genreList2.0:$Young Adult»> Для взрослых
- Для молодежи 170
- Сообщество ▾
- Группы
- Обсуждения
- Цитаты
- Задайте вопрос автору
- Войти
- Присоединиться
- 4 902 0.7.0.1.0.1.1.0.b»> Профиль Просмотр профиля 902
- Друзья
- Группы
- Обсуждения
- Комментарии
- Задание по чтению
- Kindle Заметки и основные моменты
- Цитаты
- Избранные жанры
- Рекомендации друзей
- Настройки учетной записи 7.0.1.0.1.1.0.c»> 9029 9029 9029 9029
- Мои книги
- Обзор ▾
- Рекомендации
- Награды Choice Awards
- Жанры
- Подарки
- Новые выпуски
- Списки
- Изучить
- Новости и интервью
- Жанры
- Художественная литература nouk6pq8sg.2.0.0.0.2.0.1.0.1.0.1:$genreList1.0:$Graphic Novels»> Графические романы
- Историческая фантастика
- Документальная
- Поэзия
Музыка Mror6
- Психология
- Романс
Городская усадьба Хрущева-Селезнева
Гвардии прапорщик А.
П. Хрущев приобрел усадьбу в 1814 году. Подвал главного дома, флигель и старый жилой дом начала XVIII века пережили пожар 1812 года и стали основой для строительства новой усадьбы, которая велась под пристальным контролем Строительной комиссии. под руководством архитектора О.И. Бове. Хрущевы были зажиточными помещиками и вели роскошный московский образ жизни. У Хрущевых было 14 детей. Семья была дружной, и даже когда дети росли и покидали семейный дом, их часто навещали в доме родителей.Примечательно, что Нарышкины породнились с Хрущевыми через Елизавету, дочь А.П. Хрущева. Ее муж Алексей Иванович Нарышкин слыл «великим оригиналом».
Был сыном тайного советника и сенатора Ивана Александровича Нарышкина, дяди Н.Н. Гончарова (жена А.С.Пушкина). Иван был крестным отцом на свадьбе Натальи Николаевны с Александром Пушкиным. Пушкин знал своих детей, в том числе зятя А.П. Хрущевой — Алексея Ивановича. Нарышкин, кстати, жил по соседству на Пречистенке, 16.
Капитан-лейтенант в отставке Д.
С. Селезнев приобретает дом в 1860-х годах. Д. Никифоров в своей книге «Из прошлого Москва. Записки старожила» пишет: «Хрущевский дом со всей мебелью был передан купцу Рудакову, а затем в начале 1860-х продан Д.С. Селезневу. Дом сохранился, все внутри в том же виде и обличье, что и при Хрущеве. Даже старые картины не изменили своих мест ». Семья Селезневых владела имением до 1906 года, когда последний владелец, дочь Е.Д. Матвеева передала его в приют — школу московского дворянства имени Д.С. и А.А. Селезневых.
Усадьба в то время сильно улучшилась. Администрация приюта сдавала в аренду часть комнат и отдельные постройки. По переписи 1908 года склад ящиков и вин находился в подвале главного дома, приют занимал цокольный этаж с квартирой управляющего. Комнаты классных дам и медсестры находились в антресоли. Кухня приюта, сантехнические комнаты и больница находились в большом флигеле на Хрущевском переулке.Кроме того, на втором этаже располагалось общежитие Мариинского института.
Зонтичный магазин и парикмахерская находились в музыкальном павильоне усадьбы.
Таким образом, несмотря на столь частое использование, усадьба сохраняет свой первоначальный вид до 1935 года, когда церковь Пятницы Божедомского была снесена, и на ее месте появилась гимназия, частично вклинивающаяся в усадьбу. Каменная полуротонда, находившаяся в саду усадьбы, была снесена при строительстве здания школы.Деревянный музыкальный павильон на углу Чертольского переулка был снесен в 1960 г. на белокаменный цоколь (перестроен в 1986–1987 гг.).
Все постройки усадьбы, кроме главного дома, использовались под жилье после 1917 года. С 1924 по 1931 год в главном доме находились Музей игрушек, библиотека и факультет игрушечного промысла Московского училища.
В В октябре 1957 года было принято решение о создании в Москве музея, посвященного жизни и творчеству А.С. Пушкина.
Бывшая усадьба Хрущевых-Селезневых передана под музей.В течение следующих четырех лет велись обширные реставрационные работы. 6 июня 1961 года на Пречистенке открылся музей.
Все постройки усадьбы, включая главный дом, имеют статус памятников федерального значения.

Строится из кирпича или газобетона, поэтому снести ее можно буквально двумя ударами кувалды.

Одним из недостатков трёхкомнатных квартир в хрущевках являются узкие, но при этом достаточно длинные коридоры. Из-за подобной планировки в них нельзя установить мебель, поэтому прихожая не несет в себе никакой функциональной нагрузки. Именно поэтому в процессе перепланировки очень часто коридоры сокращаются в пользу ванной или туалета – благодаря такому решению удаётся установить стиральную машину или небольшой шкаф.
м в панельном доме, которая смотрится очень современно и стильно.
Такой вариант предусматривает полную заделку дверного проема, снос стены между кухней и залом, дополнительно – расширение санузла путем присоединения бывшего прохода к кухне. Кухонную перегородку можно убрать полностью или обойтись оформлением широкого арочного прохода, ведущего на территорию гостиной. Первый вариант подразумевает применение других приемов зонирования: прозрачные раздвижные системы, предметы мебели, использование разных облицовочных материалов, возведение подиума.
Стенки и полы балкона необходимо качественно утеплить, бетонную широкую конструкцию подоконника можно переоборудовать, соорудив из нее барную стойку или полноценный кухонный стол;
Получившееся пространство расширяют далее, убирая перегородку между следующей комнатой. Таким образом, перепланированная территория представляет собой огромную студию – здесь находятся зоны приготовления пищи, столовая, место совместного семейного досуга, приема гостей. Такое объемное многофункциональное пространство требует продуманного зонирования, освещения, тщательного подбора стиля и декора;
Отличный способ получить рабочий кабинет или отселить одного из детей. Предпочтительнее «распиливать» гостиную, она самая крупногабаритная. Кроме того, ее можно немного расширить, переместив стену между залом и территорией коридора. Бонусом будет некоторая оптимизация пространства прихожей, а комната приобретет нишу, куда можно поместить диванчик, стол, домашний кинотеатр. Зал делят полноценной перегородкой из гипсокартона, раздвижной конструкцией из стекла, высоким шкафом;