Перепланировка хрущевки 3: Хрущевка 3 комнатная: планировка, перепланировка хрущевки 3 комнаты
Перепланировка хрущевки — Кадастровое бюро Недвижимость
Перепланировка хрущевки – особенности
Сейчас точно не все смогут ответить, кем был Хрущёв, но вот дома, которые возводились по одному типу в те времена, известны всем. Эти здания еще точно простоят не один год, хотя изначально они строились, как временное жилье. Если вы планируете сделать перепланировку квартиры в хрущевке, то необходимо обратить внимание на некоторые нюансы и особенности.
1. Особенности перепланировки квартиры в хрущевке
1.1. Отсутствуют несущие конструкции
Практически во всех квартирах с такой планировкой нет несущих конструкций, и это означает, что внутренние стены можно демонтировать и переустраивать, не боясь нанести вред всему помещению. При этом обязательно стоит понимать, что требования контролирующих органов все равно должны учитываться.
Как правило все несущие стены находятся лишь в тех местах, где происходит разделение квартир. Все остальные стены не являются несущими, что позволяет производить с ними различные манипуляции.
Однако иногда внутри квартир устанавливаются специальные балки, опорой которых служат несущие стены.
Неверно думать, что при работе без затрагивания несущих стен нет необходимости проводить согласование перепланировки хрущевки. Важно помнить, что любые работы по изменению планировки должны быть обязательно согласованы. Помимо этого нужно составить точный проект. Это нужно для того, чтобы позднее можно было внести изменения в документы БТИ. Подготавливать такой проект должны исключительно организации, которые имеют соответствующий допуск.
1.2. При работе с санузлом
Чаще всего в хрущевках санузел маленькой площади. При этом нормы говорят о том, что расширять пространство мокрых зон допускается только в том случае, если для этого используется пространство нежилых помещений. Если же вы собираетесь затронуть территорию кухни или жилых зон, то в согласовании точно будет отказано.
Бывают ситуации, когда часть территории квартиры по документам БТИ считается частью комнаты, а на самом деле – это коридор.
1.3. Демонтаж перегородки между кухней и комнатой
Часто случаются ситуации, когда в хрущевках небольшой по площади оказывается не только мокрая зона, но еще и кухонная. В этом случае очень хочется ее расширить, однако законодательство содержит разные нюансы, о которых стоит узнать заранее.
Следует учесть, что постановление Правительства указывает на невозможность и запрет расширения кухни за счет площади жилых комнат. На кухнях с газовой плитой нельзя ломать перегородку между комнатами, а также делать ее без двери.
Газовые плиты установлены во многих квартирах, именно поэтому, чаще всего перепланировка в хрущевках и расширение кухни будет невозможным.
Есть разные выходы из этой ситуации. Можно заменить газовую плиту электрической, но, вероятнее всего, это будет слишком затратно и неоправданно. Второй вариант – это использовать раздвижные перегородки.
Итак, наверное, уже понятно, что согласование перепланировки хрущевки – это очень сложный процесс, который нужно очень хорошо подготовить.
Осуществить перепланировку в однокомнатной или двухкомнатной квартире весьма затруднительно. А вот перепланировка 3-комнатной хрущевки или 4 комнатной более доступна.
Наша компания предлагает разные варианты перепланировки хрущевки в зависимости от площади. Это проекты, на которые были выданы необходимые разрешения, и они были полностью согласованы. Среди них вы наверняка найдете варианты, похожие на вашу квартиру, что позволит использовать их для переустройства или перепланировки.
2. Перепланировка хрущевки варианты
2.1 Перепланировка 2-комнатной хрущевки
Это не совсем типичный проект. В данном случае санузел для большего удобства решили совместить и расширить за счет пространства коридора, ведущего на кухню.
Был также переработан вход в кухню и теперь он находится со стороны комнаты. Между ними были установлены раздвижные перегородки.
2.2. Перепланировка 1-комнатной хрущевки
Выполнены практически те же самые работы, что и в первом примере. Однако в данном случае перепланировку выполняли в однокомнатной хрущевке. Для такой квартиры удалось получить очень большой санузел. Тут разместили ванную, душ и стиральную машину. Такие варианты встречаются очень редко.
2.3. Перепланировка двухкомнатной хрущевки
Этот проект отличается от других тем, что между кухней и комнатой убрали перегородку. Это стало возможно благодаря тому, что во всех квартирах проводился капитальный ремонт и вместо газовых плит установили электроплиты. В настоящее время такие варианты встречаются редко, и этот проект тоже можно считать нетипичным.
2.4. Перепланировка 2-комнатной хрущевки
В этом проекте перепланировки пошли нестандартным путем. Увеличение кухонного пространства за счет ширины перегородки никаких законов не нарушает, так как пространство не заходит на территорию жилой комнаты соседей с нижнего этажа.
При этом нужно отметить и тот факт, что вероятность согласования проекта зависит главным образом от решения проверяющего чиновника.
2.5. Перепланировка однокомнатной хрущевки
Проекты перепланировки однокомнатных квартир не предполагают каких-либо больших изменений. Здесь за счет коридора была расширена зона санузла, а вход на кухню перенесен и теперь он будет находиться в жилой комнате. Таким образом, можно cказать, что это перепланировка хрущевки студия.
2.6. Перепланировка угловой однокомнатной хрущевки
Преимуществом угловых комнат является наличие еще одного окна. Это позволяет создавать из одной большой комнаты две маленькие. Однако данный вариант не всегда уместен, из-за того, что комнаты получаются совсем небольшими. В примере использовали другое решение – увеличили пространство санузла, а рольставни теперь служат перегородкой.
2.7. Перепланировка двухкомнатной хрущевки
Работы были выполнены практически те же самые, что и в прошлых вариантах, только здесь в качестве перегородки между кухней и комнатой были установлены раздвижные конструкции.
Больше пространство коридора и кухни ничем не отделено друг от друга.
2.8. Перепланировка трехкомнатной квартиры в хрущевке
Санузел увеличили за счет пространства коридора. Кухня добавлена к пространству гостиной. В планах БТИ не было информации о том, что в помещении есть плита. Для согласования перепланировки, понадобилось предоставить документы, которые подтверждают, что там установили именно электроплиту.
2.9. Перепланировка трехкомнатного помещения
Газифицированная кухня перемещена в коридор. Для этого был заглушен газовый стояк, а вместо газовой плиты установили электрическую. Именно этот факт помог провести согласование проведения всех работ.
2.10. Перепланировка хрущевки с 3 комнатами
В этом случае проект предусматривал использование рольставней при присоединении кухни к комнате. Их легко демонтировать, а низкая цена является дополнительным преимуществом. Рольставни можно держать постоянно в открытом состоянии и не производить демонтаж.
2.11. Перепланировка трехкомнатной хрущевки
У этой планировки есть свои особенности. В ходе работ появился еще один выход в коридор из санузла, так как санитарно-гигиенические нормы запрещают делать выход из санузла в жилую комнату.
2.12. Перепланировка четырехкомнатной хрущевки
Перепланировка хрущевки, стоимость которой складывается из нескольких составляющих, также учитывает и сколько комнат в вашей квартире. В этой четырехкомнатной хрущевке были применены еще старые требования, когда кухни, где установлены газовые плиты, можно было присоединить к пространству жилых помещений, в том случае, если в экспликации они показаны как нежилые.
Мы рассмотрели несколько вариантов перепланировки, которые были согласованы контролирующими органами. Разрешение на перепланировку выдает жилищная инспекция после проверки проекта.
Заказать услугу Заказать звонок
Перепланировка хрущевки: 100+ вариантов на фото
Выбираем цветовую гамму
Правильно подобранная цветовая гамма визуально расширяет пространство даже небольшой квартиры.
В типовой хрущевке мало свободного места. Поэтому следует тщательно отнестись к выбору оттенков меблировки, пола, стен, потолочного покрытия:
- светлые цвета создают иллюзию большего объема;
- мелкий узор на обоях делает комнату просторнее, крупный – уменьшает пространство;
- лучше отказаться от использования в дизайне насыщенных ярких цветов: они визуально сокращают пространство, заставляя ваше обиталище выглядеть маленьким и тесным. В качестве ярких акцентов в дизайне квартиры используйте подушки, картины, фото и сувениры;
- глянцевый натяжной фальшпотолок визуально расширит пространство, если цвет его светлее тона стен;
- отдельным цветовым элементом дизайна может стать объемная штукатурка, обои с декоративным орнаментом;
- для детской оптимальными являются нежные пастельные тона: они успокаивающе влияют на ребенка;
- небольшая кухня будет казаться просторнее, если вы используете зеркальные поверхности – например, холодильник и шкафы.

Изначально своеобразное расположение комнат в квартире хрущевских времен не способствует комфортному проживанию. Поэтому дизайн трехкомнатной хрущевки должен быть продуманным. Основной целью ремонта должна стать функциональность – разумеется, не в ущерб превосходному внешнему облику. Тогда старенькая «хрущоба» превратится в уютное и комфортное для всех ее обитателей жилье, которым вы сможете гордиться.
Обустройство квартиры
Дизайн интерьера трехкомнатной квартиры содержит множество тонкостей и нюансов, ведь грамотно спланированное пространство требует очень скурпулезного оформления. Далее более подробно рассмотрим тему выбора стилевого направления и отделочных материалов.
Выбор стиля интерьера
Первое, с чем следует определиться после окончания перепланировочных работ — это стилистическое направление. Варианты дизайна трехкомнатных хрущевок весьма разнообразны — интерьер можно оформить как в простом минималистичном стиле, так и в более оригинальном и необычном (при условии, что будут соблюдены общие правила дизайна малометражных квартир).
Наиболее широкое распространие получили следующие интерьерные жанры:
- минимализм;
- контемпорари;
- хай-тек;
- модерн;
- скандинавский стиль;
- японский стиль.
При выборе стилевого направления важно учитывать общую площадь помещения, особенности планировки и ваши личные предпочтения
Стены
Выбор настенного покрытия для трехкомнатной квартиры — процесс довольно сложный, ведь в современных магазинах представлен огромнейший ассортимент самых разных облицовочных материалов для стен.
Двухкомнатная хрущевка: переделка
В постройках тех лет двухкомнатных квартир гораздо больше, чем однокомнатных, но проблемы у них одни и те же: малые площади и не продуманное расположение комнат, с наличием проходных помещений.
Если заняться перемещением стен, то большинство проблем оказываются решаемыми. Например, имеется возможность разделения смежных комнат, после чего можно из двухкомнатной квартиры сделать и трехкомнатную. Для этого достаточно смонтировать еще одну перегородку, которая отделит комнату от коридора. В результате появляется дополнительная полезная площадь, где можно разместить гардеробную и кладовку. Полученное таким образом второе помещение более длинное и более узкое, разделяется на две части, посредством перегородки из гипсокартона.
На фото ниже представлен второй вариант неудачного планирования жилого пространства тех времен. Здесь, чтобы попасть во вторую комнату, необходимо пройти через первую. Планировка настолько неудачная, что, мало того, что малые площади, еще и появляются и мертвые зоны, что искажает функциональность комнат. Иногда, в торце второй комнаты располагают кладовку, которая не может быть использована в полной мере.
После переделки по этому варианту, ванна приобрела квадратную форму, а прихожая соединилась с первой комнатой.
В данном случае, она выполняет роль гостиной, из которой сформирован вход в кухню. Следующее, более дальнее помещение разделено на две спальни. Перегородка между двумя спальнями смонтирована таким образом, чтобы осталось место для небольших гардеробных одной и другой спален.
Обычную двухкомнатную хрущевку в панельном доме, возможно превратить в квартиру студию, объединив гостиную и кухню. Основная задача подобной переделки состоит в том, чтобы сместить входные двери. За счет этого большая прихожая послужит в качестве гардеробной. При этом, объединяются туалет и ванна, а кухня и гостиная объединяются за счет частично разобранной перегородки.
Если имеется желание, то вторая комната может быть разделена на две части, за счет перегородки из гипсокартона, что позволит разделить рабочую и спальную зоны. Чтобы в спальню проникал свет, перегородку достаточно поднять на высоту не больше 1,5 метра.
Достаточно интересный вариант переделки 2-х комнатной квартиры в 3-х комнатную.
Здесь прихожая немного скошена, что дало возможность увеличить площадь санузла, а перегородка, которая установлена между кухней и комнатой, частично удаляется. Вторая комната разделяется на 2 части, площадь которой увеличивается за счет кладовки и стенного шкафа. В результате образовались 2 спальни, а так как квартира угловая, то в каждой из спален имеется свое окно.
Коридор принял интересную форму, так как его стены располагаются по диагонали. В результате получается неплохой вариант, хотя функциональность коридора значительно снижена.
4 варианта перепланировки двухкомнатных хрущёвок
Свет, пастель и немного ретро: все секреты ванной в…
Потолок
Стоит взять во внимание, что не нужно приобретать для освещения огромные массивные люстры. Самым оптимальным вариантом являются точечные светильники
Низкий потолок оформляют, как и стены, в светлые цвета. В отличии от темных оттенков, светлые не «давят» на жителей квартиры. Иногда используют зеркала.
Также неплохим вариантом будет использование на потолке многоуровневых ступеней, которые тоже неплохо могут зрительно увеличить квартиру.
Будьте внимательны, что при натяжном потолке или гипсокартонном покрытии от потолка часто вычитаются сантиметров, которые незаметны, но все же снижают потолок. Иногда такие варианты для ремонта неприемлемы.
Почему поросята плохо едят: основные причины, что делать в этой ситуации
Необходимые документы
Ремонт и изменения в перепланировке проходят в следующем порядке. Сначала необходимо проконсультироваться со специалистами, которые одобрят ваш эскиз новой планировки квартиры. Положительные результаты этого этапа необходимы для следующего шага – подписи и разрешения в администрации на ремонт в вашей квартире.
Необходимо предоставить документы:
- эскиз;
- рисунок квартиры с ярко выраженными изменениями;
- проект.
Если в ваших планах предоставить эскиз квартиры на бумаге, то придется собирать ряд необходимых документов.
Преимуществом трехкомнатных квартир, как говорилось ранее, является встроенная кладовая или некий шкаф, который входит в планировку самой квартиры.
Перепланировка трехкомнатной хрущевки
Главный недостаток трехкомнатной хрущевки — мизерная площадь ванной и туалета. Квартиры переделывают в основном ради увеличения метража санузла. Ванную и туалет объединяют, добавляя площадь бывшего коридора, который ранее был частью прихожей и вел к кухне. Придется заново отделывать уже совмещенный санузел, так как дополнительная зона не имеет нужной гидроизоляции. Дверной проем, ведущий на кухню, делают в соседней с ней комнате, которая раньше была изолирована. Теперь это помещение станет проходным. Однако, допускается вариант объединения двух пространств, так как это не нанесет серьезного ущерба трешке. В совмещенном помещении обустраивают кухню и гостиную, разделенные барной стойкой.
Размножение
Популярные статьи
Просмотрты: 103549
Просмотрты: 101060
Просмотрты: 97684
Просмотрты: 93550
Просмотрты: 91510
Просмотрты: 91012
Просмотрты: 88551
Просмотрты: 83309
Просмотрты: 81659
Просмотрты: 80193
Просмотрты: 78586
Просмотрты: 74476
Переделка хрущевки двушки
Двухкомнатных хрущевок в домах этих лет большинство.
Недостатки у них такие-же, как и у однокомнатных: маленькие площади и неудобная планировка, проходные помещения. Тем не менее, большинство проблем можно решить переносом некоторых стен. Например, смежные комнаты можно разделить, а попутно из двухкомнатной сделать трехкомнатную.
Переделка хрущевки: из «трамвайчика» делаем две раздельные комнаты
Ставим дополнительную перегородку, отделяющую комнату от коридора. Таким образом получается довольно обширное по размерам помещение, которое можно использовать как кладовку, а можно превратить в гардеробную. Второе помещение — длинное и узкое — разбивается на две зоны: спальню и гостиную при помощи легкой перегородки из гипсокартона или другого листового материала.
На фото ниже — другой тип проходных комнат в двушке: — чтобы попасть во вторую комнату, первую нужно пересечь от одной стены до другой. Крайне неудачная планировка в том плане, что функциональность первого помещение очень низкая: выпадает «мертвая» зона прохода.
А так как часто в торце второй комнаты сделана кладовка, то и она не может использоваться полностью.
Еще вариант переделки двухкомнатной квартиры в трехкомнатную
По предложенному варианту переделки форма ванной за счет переноса стены становится прямоугольной, прихожая объединяется с первой комнатой. Ее используют как гостиную, из которой сделан вход в кухню. Дальнее помещение разбито на две небольшие спальни
Обратите внимание на перегородку между двумя спальнями — она нелинейная, чтобы была возможность устроить небольшую гардеробную в обоих комнатах
Перепланировка хрущевки: 2 комнаты
Можно обычную двухкомнатную квартиру в панельной хрущевке превратить в современную квартиру-студию с объединенной гостиной-кухней. Основная задача при такой перепланировке — добиться разрешения перенести входные двери. При этом бывшая прихожая превращается в гардеробную. Кухня и гостиная объединяются за счет частично снесенной перегородки, также объединяется санузел.
При желании вторую комнату можно разбить на две при помощи легкой перегородки, которая отделяет спальню рабочей зоны или кабинета.
Чтобы зонирование было более полным но при этом в спальне был доступ солнечного света, перегородку можно делать не на всю высоту, а примерно на 1,5 метра.
Интересный вариант перепланировки угловой двушки
Очень эффектно решен вопрос переделки двушки в этом варианте переделки. Фактически она стала трешкой. За счет того, что прихожая скошена, увеличена площадь санузла. Перегородка, отделяющая кухню от комнаты частично разобрана. Вторая комната разделена на две части, площадь второй увелисена за счет кладовки и стенного шкафа. Получилось две отдельных спальни, причем за счет того что квартира угловая, окна есть в обеих.
Коридор имеет необычную форму — его стены расположены по диагонали. Функциональность его небольшая, но и площадь тоже. А в остальном очень хороший вариант.
Несколько вариантов ремонта однокомнатных квартир с использованием описанных приемов можно посмотреть тут.
А ремонт двухкомнатных (с реальными фото) описаны в этой статье.
Чем застелить пол?
В отличии от современных квартир в 3-х квартирной «хрущевке» пол покрывали деревянными досками. Срок службы такого пола не более 30 лет. Все зависит от влажности в квартире и условий эксплуатации напольного покрытия.
Если жильцы решают покрыть пол линолеумом или ламинатом, тогда следует в первую очередь провести смену старого пола и выровнять все его недочеты. Исключением является плитка, при укладке которой выравнивание пола не требуется. Последняя идеально подходит для напольного покрытия для квартиры-студии, в которую, нередко, переделывают трехкомнатную квартиру в «хрущевке».
Если каждую стену квартиры покрыть шпаклевкой, и поклеить обои с разным орнаментом, получиться очень уютная и милая квартира. За счет разного рисунка, стены приобретают иллюзию отдаленности друг от друга.
Освещение
Немного об интерьере
При выборе стиля интерьера будьте внимательны: не покупайте для маленькой квартиры с небольшим жилым пространством огромные статуи или громоздкие шкафы.
Рассмотрим вариант минимализма в интерьере:
- Использование только светлых тонов, начиная от белого и, заканчивая бежевыми или бирюзовыми.
- Не стоит использовать в декорациях сложные элементы. Больше простоты, и результат не заставит себя долго ждать.
- Используйте в одной сплошной комнате цветовые зоны.
- Вместо люстры купите точечные светильники или бра.
- Ничто не заменит естественное освещение, больше окон – больше света.
Минимализм в дизайне хорош тем, что в его оформлении используются вещи-трансформеры, такие как кровать, диван или стол. Для кухни оптимальным вариантом будет гарнитур со шкафами полностью, на всю длину стены: от пола до потолка.
Планировка
Способы перепланировки
При капитальном ремонте квартиры многие владельцы хрущевок прибегают к полной или частичной перепланировке всего помещения, поскольку в большинстве случаев это почти единственная возможность кардинально улучшить свои жилищные условия.
В настоящее время дизайнеры предлагают достаточно большое количество готовых планировочных решений, каждое из которых отличается размерами и расположением комнат. Давайте более подробно рассмотрим самые популярные и часто встречающиеся варианты.
Кухня-гостиная
Объединение кухни с гостиной можно по праву назвать одним из самых актуальных перепланировочных решений. Удаление стены между кухней и гостиной позволяет создать единое пространство, не перегруженное излишними деталями. Увеличенная площадь кухни предоставляет возможность создать полноценную обеденную зону и гармонично разместить в ней всю необходимую бытовую технику.
Спальня
Помещение для сна во многих хрущевских квартирах имеет довольно скромные размеры, поэтому владельцам зачастую приходится рационально использовать каждый миллиметр свободного пространства. Немного расширить помещение для сна можно за счет прилегающей комнаты.
При желании кладовое помещение можно переоборудовать в небольшую гардеробную комнату, отделенную от спальни легкой перегородкой или текстильными шторами.
Небольшая гардеробная комната может стать отличной альтернативой громоздкому шкафу, позволяя существенно сэкономить полезную площадь спальни.
Коридор и ванная
Главным недостатком многих хрущевок являются узкие длинные коридоры, в которых практически невозможно разместить глубокие вместительные шкафы или любую другую мебель. Грамотная перепланировка трехкомнатной квартиры с длинным коридором открывает большие возможности для корректировки общей геометрии пространства и для увеличения площади ванной комнаты или совмещенного санузла.
Сократив часть площади прихожей, можно значительно увеличить ванную комнату и разместить на ее территории большой хозяйственный шкаф со стиральной машиной. Как правило, такая перепланировка имеет множество нюансов, поэтому перед проведением ремонтных работ необходимо обязательно проконсультироваться с грамотным специалистом.
Перепланировка санузла и изолирование смежных комнат
В малогабаритных трехкомнатных квартирах нередко применяются решения о перепланировке санузла.
Ванная комната в хрущевках очень часто имеет экстремально маленькие размеры, поэтому при отсутствии капитальной несущей стены ее можно совместить с туалетом. Обычно такая планировка в техническом плане является несложной, поэтому проблемы с ее регистрацией в БТИ вряд ли возникнут.
Еще одним серьезным недостатком многих хрущевок можно назвать смежные комнаты. Как правило, квартиры со смежными помещениями считаются очень неудобными, особенно если они предназначаются для проживания большой семьи.
Для изолирования смежных комнат дизайнеры советуют соорудить узкий коридор с отдельным входом в каждое помещение. Разумеется, жилая площадь в данном случае немного сократиться, но зато вы получите два полностью изолированных друг от друга помещения, в одном из которых можно разместить родительскую спальню, а в другом — детскую комнату или рабочий кабинет.
Схема подключения вводного автомата
Перепланировка 1-комнатной квартиры в хрущевке
Перепланировка однокомнатной квартиры в хрущевке подразумевает два варианта – либо мы находим способы выкроить дополнительные квадратные метры и делаем пространство максимально свободным, либо делим одну комнату на две.
Нередко перепланировка затрагивает балконы и лоджии, присоединяя их к общей полезной площади. В таком случае необходимо буде позаботиться об их дополнительном утеплении.
Проект 2
В данном случае владельцы нашли грамотный выход, как увеличить пространство гостиной и в то же время скрыть часть приватной территории от посторонних глаз. Здесь с помощью гипсокартонной перегородки отделили спальню, а остальное пространство комнаты объединили с кухней, демонтировав разделяющую их стену. Такие способы перепланировки встречаются нередко, по сути, однокомнатная квартира перестраивается в двухкомнатную. Можно также задействовать территорию балкона. Если нет желания или возможности присоединить его к территории квартиры, достаточно застеклить, утеплить стены и сделать эксплуатируемой территорией, установив, например, шкаф или рабочий стол.
Перепланировка 3 х комнатной хрущевки
Переделка трехкомнатной квартиры в хрущевке серии II-57.
3.2. Самое худшее в этом варианте — мизерные размеры туалета и ванной. В основном для того чтобы исправить ситуацию и затевался ремонт. Для перепланировки убрали простенки между туалетом и ванной, примыкающую часть коридора отгородили стеной, в которой сделали двери. Так как в зоне, где ранее был коридор, гидроизоляция перекрытия хуже, требуются в этой зоне дополнительные меры.
Перепланировка трехкомнатной хрущевки: фото до и после
Второе слабое место первоначальной планировки: некуда шкаф поставить. В занятом под ванную отрезке коридора был небольшой стенной шкаф, но он был очень мал. В связи с этим было принято решение перенести стену одной из спален, а на освободившемся месте сделать гардероб.
Чтобы объединить кухню и гостиную, была разрушена часть стены. Согласно проекта, необходимо было произвести усиление прилегающих несущих стен и перекрытия. Так как плита на кухне — газовая, необходимы двери. Были поставлены раздвижные.
Следующий вариант ремонта затевался с целью увеличить площадь санузлов, а также превратить одну из комнат в гостиную-столовую, с выходом в кухню.
Попутно требуется получить две спальни.
Перепланировка 3 х комнатной квартиры хрущевки
Были разобраны простенки между туалетом и ванной, часть коридора отходит к санузлу. Для организации нормального пространства прихожей немного сдвигается стена одой из комнат. В кухню делают вход со стороны гостиной, на противоположной стене сделан вход во вторую спальню, а дверной блок, который ранее вел во вторую спальню демонтирован, проем заделан. Об оформлении арок читаем тут.
Переделка планировки: до и после
Еще один вариант. Главная задача, которую решает перепланировка хрущевки — увеличение площади кухни и санузла. Решение для санузла традиционное — убрали простенки, также выровняли выровняли стену. Маленькая кухня объединена со столовой. В ей даже нашлось место для группы отдыха — дивана и телевизора.
Решенная еще одна задача: проходные комнаты разделены. Произошло это за счет уменьшения площади, но помещения стали более функциональными, а в выгороженных площадях сделаны две гардеробные комнаты.
з>
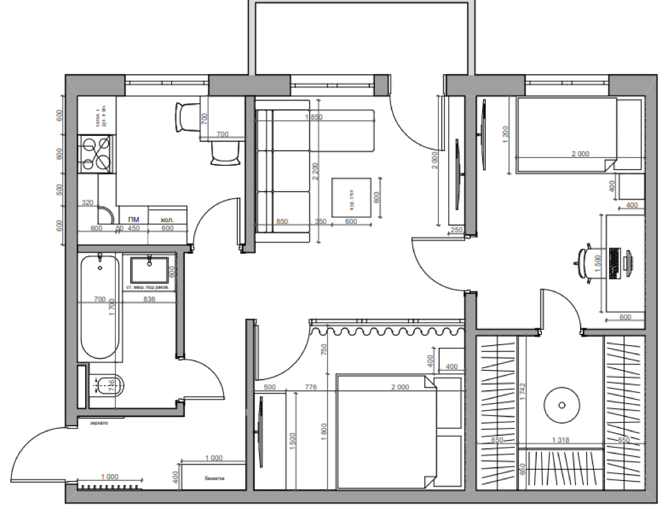
Перепланировка трехкомнатной хрущевки
4.1. Три смежные комнаты (Перепланировка трех смежных комнат)
В 3 комнатной квартире бывают и такие варианты, что все 3 комнаты смежные. Выход из одного жилого помещения происходит через другое. Коридор в этом случае соединяет только кухню, ванну и туалет. Перепланировка пространства в таких квартирах тоже возможна. Собственники 3 х комнатной перепланируют площадь под свои нужды: объединяют и расширяют санузел с перестановкой санитарного оборудования за счет уменьшения коридора, в части кухни происходит перестановка плиты и мебели, меняется концепция путем добавления барной стойки, из проходной гостиной делают изолированную спальню, производят совмещение и расширение помещений.
Новый стиль позволяет осуществить самые смелые дизайны и в современном воплощении. Можно увеличить пространство зала, в части его объединения с кухней. Трехкомнатная хрущевка – настоящее поле для фантазий, позволяющее осуществить самые смелые идеи по разделенной или совмещенной площади комнат.
Планировка
Рассмотрим типичные виды 3-комнатной квартиры в стиле «хрущевка»:
- ярко выражена одна большая комната, остальные две всегда намного меньше;
- две комнаты расположены вместе и одна маленькая отдельно от них;
- комнаты, пригодные для проживания, находятся по разные стороны дома;
- комнаты изолированы друг от друга.
Преимущество таких квартир в том, что в одной из жилых комнат имеется так называемая кладовка. Это хорошо тем, что здесь обычно отводят место под верхнюю одежду. Довольно неплохой вариант сэкономить деньги и отказаться от покупки габаритных шкафов, которые значительно сокращают квадратные метры и делают комнату меньше.
Самая большая комната, в основном, становится залом для гостей. Здесь можно собираться всей семьей или компанией. Места для всех будет достаточно. Другую комнату выбирают в качестве спальни.
Двухкомнатная хрущевка: переделка
В постройках тех лет двухкомнатных квартир гораздо больше, чем однокомнатных, но проблемы у них одни и те же: малые площади и не продуманное расположение комнат, с наличием проходных помещений. Если заняться перемещением стен, то большинство проблем оказываются решаемыми. Например, имеется возможность разделения смежных комнат, после чего можно из двухкомнатной квартиры сделать и трехкомнатную. Для этого достаточно смонтировать еще одну перегородку, которая отделит комнату от коридора. В результате появляется дополнительная полезная площадь, где можно разместить гардеробную и кладовку. Полученное таким образом второе помещение более длинное и более узкое, разделяется на две части, посредством перегородки из гипсокартона.
На фото ниже представлен второй вариант неудачного планирования жилого пространства тех времен. Здесь, чтобы попасть во вторую комнату, необходимо пройти через первую. Планировка настолько неудачная, что, мало того, что малые площади, еще и появляются и мертвые зоны, что искажает функциональность комнат. Иногда, в торце второй комнаты располагают кладовку, которая не может быть использована в полной мере.
После переделки по этому варианту, ванна приобрела квадратную форму, а прихожая соединилась с первой комнатой. В данном случае, она выполняет роль гостиной, из которой сформирован вход в кухню. Следующее, более дальнее помещение разделено на две спальни. Перегородка между двумя спальнями смонтирована таким образом, чтобы осталось место для небольших гардеробных одной и другой спален.
Обычную двухкомнатную хрущевку в панельном доме, возможно превратить в квартиру студию, объединив гостиную и кухню. Основная задача подобной переделки состоит в том, чтобы сместить входные двери.
За счет этого большая прихожая послужит в качестве гардеробной. При этом, объединяются туалет и ванна, а кухня и гостиная объединяются за счет частично разобранной перегородки.
Если имеется желание, то вторая комната может быть разделена на две части, за счет перегородки из гипсокартона, что позволит разделить рабочую и спальную зоны. Чтобы в спальню проникал свет, перегородку достаточно поднять на высоту не больше 1,5 метра.
Достаточно интересный вариант переделки 2-х комнатной квартиры в 3-х комнатную. Здесь прихожая немного скошена, что дало возможность увеличить площадь санузла, а перегородка, которая установлена между кухней и комнатой, частично удаляется. Вторая комната разделяется на 2 части, площадь которой увеличивается за счет кладовки и стенного шкафа. В результате образовались 2 спальни, а так как квартира угловая, то в каждой из спален имеется свое окно.
Коридор принял интересную форму, так как его стены располагаются по диагонали. В результате получается неплохой вариант, хотя функциональность коридора значительно снижена.
4 варианта перепланировки двухкомнатных хрущёвок
Watch this video on YouTube
Перепланировка трёхкомнатной «хрущёвки»
Чем больше в квартире квадратных метров, тем шире может разгуляться фантазия ее владельца при проведении перепланировки жилого помещения. Однако не все обладатели стареньких «хрущёвок» знают, что это же правило применительно и к их жилью, правильно сделанная перепланировка трехкомнатной квартиры может изменить Ваше мнение о собственном жилье. На данный момент стали возможны практические любые варианты видоизменения квартиры, начиная от банального объединения санузла, до превращения крохотной квартирки в модную нынче квартиру — студию без стен и перегородок.
Перепланировка 3-х комнатной «хрущёвки» планируется в основном не с целью сделать квартиру красивой и модной, а с целью увеличить хоть на дюйм жизненное пространство в тесных вспомогательных помещениях, которыми «заботливые» проектировщики наделили скромную «хрущёвку»: небольшую ванную комнату и еще меньший по площади санузел, метровый коридор, и крохотную кухню.
Большой плюс почти всех серий «хрущёвок» — тонкие внутренние стены квартиры, являющиеся по своей сути простыми перегородками, легкими в демонтаже, позволяющими произвести любые изменения без ущерба всей конструкции жилого дома.
Наиболее часто встречаемый вариант — перепланировка 3-х комнатной квартиры с объединением проходного зала с кухней, в результате которого в квартире появляется просторная гостиная с элементами столовой. Такое видоизменение решит сразу же несколько проблем:
- преобразится и расширится кухонное помещение, которое сможет вместить в себя не только всю необходимую бытовую технику, но и всех членов семьи за одним обеденным столом;
- перепланировка трехкомнатной «хрущёвки», с элементами объединения кухни и гостиной в одно помещение, предоставляет собственнику огромный выбор вариантов в обустройстве интерьера жилья, не уступающий современным тенденциям.
Но следует принять во внимание, что при осуществлении своего долгожданного ремонта лучше обратиться к профессиональным дизайнерам, которые разработают для вас интересный и гармоничный дизайн — проект с учетом всех пожеланий и требований.
Вторым, наиболее используемым решением является перепланировка «трёшки» с объединением ванной комнаты с туалетом в одно большое пространство, позволяющее выделить больше полезной площади и позволяющее поставить в ванную комнату стиральную машину или бойлер. А если и после объединения санузла, площади помещения не хватает, то можно задействовать при расширении ванной часть прилегающего к ней коридора. Однако такая перепланировка 3-х комнатной квартиры быть согласована с проектной организацией и на нее необходимо подготовить соответствующую документацию, так как в соответствии с законодательством при увеличении площади мокрых зон необходимо увеличить и площадь гидроизоляционного покрытия.
Когда Вы определитесь, какая должна быть перепланировка 3-х комнатной квартиры и окончательно прикинете список запланированных изменений, необходимо переходить к следующему этапу — этапу подготовки проекта перепланировки 3-х комнатной квартиры и сбора всех необходимых документов.
На этом этапе лучше не заниматься самодеятельностью и заказать проект в проектной организации, обладающей допуском и имеющей опыт в разработке подобных проектов в домах Вашей серии. Что бы не прогадать с выбором проектной организации можно обратиться за консультацией в службе одного окна Жилищной инспекции, в которой подскажут требования к проектной организации могут отличаться в зависимости от типа и сложности работ.
После подготовки проекта перепланировки «хрущёвки» при его согласовании с государственными органами от Вас потребуют следующий пакет документов: заверенную у нотариуса копию правоустанавливающего документа на квартиру (договора найма, купли — продажи, дарения и прочее), поэтажную схему дома с экспликацией, копию лицевого счета.
Обычно перепланировка 3-х комнатной квартиры «хрущёвка» не ограничивается каким — то одним изменением, благодаря строительным особенностям помещения, у владельца есть неограниченная возможность основательно изменить имеющуюся квартиру до неузнаваемости.
В обычной трехкомнатной «хрущёвке» помимо стандартных комнат зала, спальни и детской, при желании можно организовать личный кабинет, комнату для отдыха и развлечений, даже спортивный уголок.
Если Вы хотите оформить свою квартиру в классическом стиле то Вам достаточно использовать вариант ремонта 3-х комнатной «хрущёвки», при котором объединяют метровый коридор с частью одной из прилегающих комнат, в итоге в квартире вместо маленького коридора появляется достаточной просторный холл. При таком ремонте даже не придется рушить стену между коридором и комнатой, а всего лишь сделать дверной проем шире, заменив обычную дверь аркой. Самое распространенное и наиболее часто встречаемое в сети интернет решение — перепланировка «трёшки» с объединением балкона с прилегающим помещением, обычно с кухней или комнатой. Однако при проведении такой перепланировки существует очень много как правовых, так и бытовых нюансов, поэтому ни в коем случае не стоить делать работы по объединению помещений самостоятельно.
Так, при объединении комнаты с прилегающим к ней балконом необходимо тщательно продумать расположение батареи центрального отопления. В соответствии с действующим законодательством, вынос и установка любых батарей на балконе запрещены, поэтому этот вопрос необходимо решить еще на стадии составления дизайн — проекта. Так же при соединении помещений нужно заранее не только остеклить балкон, но и позаботиться о его утеплении. Еще одним нюансом, который нужно учитывать при такой перепланировке, что полное объединение холодного и теплого помещений не предусмотрено строительными нормами, поэтому заранее нужно подумать о раздвижных перегородках, которые хотя бы визуально разделяли объединенные помещения.
Как мы уже рассказали различных решений перепланировки трехкомнатной «хрущёвки» огромное множество, от не значительных до капитальных, однако если Вы задумали кардинальные изменения своего жилья квартиры, мы советуем Вам сразу обратиться к квалифицированному дизайнеру за составлением индивидуального дизайн — проекта квартиры.
Своевременное обращение к дизайнеру позволит Вам сэкономить время и силы, а так же будет залогом того, что Вы не разочаруетесь полученным результатом. Не стоит забывать и о проектных организациях, с которыми согласование перепланировки 3-х комнатной «хрущёвки» просто необходимо.
В силу большой загруженности, как на работе, так и дома, зачастую на сбор документов и разрешений на перепланировку просто не хватает времени, но это не повод делать ремонт своими руками на свой страх и риск. Сегодня в Москве огромное количество фирм и частных организаций готовых предложить свои посреднические услуги при представлении ваших интересов по вопросу перепланировки 3-х комнатной квартиры, связанных как с минимальными изменениями, так и при проведений перепланировок, затрагивающих несущие стены. Профессионалы помогут Вам в короткие сроки получить необходимые документы и дадут Вам несколько советов, какой именно дизайн подойдет именно вашему жилищу.
Вы можете заказать предварительную консультацию по телефону +7 (967) 087-44-23
Или воспользоваться формой обратной связи.
Мы будем рады помочь Вам в решении любых возникающих вопросов.
Перепланировка хрущевки. Варианты. Примеры. Описание. Согласование!
Во времена правления с 1953 г., по 1964 г., появился термин «Хрущевка». Этим термином называли дома, построенные по указанию Никиты Сергеевича Хрущева. В послевоенное время необходимо было строить много жилья и одним из решением было разработать типовые дома, которые можно построить быстро. Появлялись новые заводы, в том числе и домостроительные комбинаты. На базе ДСК и стали производить стеновые панели, которые были предназначены для строительства быстровозводимых зданий. Они не имели излишеств, архитектуре не отводилось должного внимания, главной задачей было быстро и много. Квартиры называли коробкой, планировки были одинаковые, комнаты и кухни небольшие, потолки невысокие, но считались отдельными благоустроенными квартирами. На тот момент многие жили в бараках, малоэтажных домах и получить ключи от такой новостройки было очень приятно.
Какие бывают
В городах где не было домостроительных комбинатов Хрущевки строили из кирпича, также по разработанным типовым сериям. Характеристики не особо отличались от панельных. Также были разработаны серии блочных домов. Все имеют главную конструктивную особенность, несущие стены внешние фасадные, продольная по центру и межквартирные. Перегородки практически все ненесущие. Но это не значит что все можно сносить, есть варианты наличия колонн, ригелей (балок) и несущих элементов. Перед началом производства ремонтно-строительных работ и подготовкой плана перепланировки необходимо специалистам обследовать конструкции квартиры, дома и только после заключения о состоянии конструкций разработать план перепланировки.
Основные виды работы, заключаются:
- в объединении санузла с возможным увеличением за счет коридора
- объединении кухни с комнатой (при наличии электроплиты)
- устройством новых проемов в комнаты
- перенос перегородок
- демонтаж антресолей и встроенных шкафов
- организация новых подсобных помещений (кладовых, гардеробных).

Необходимо учитывать, что на основании действующего законодательства объединять газифицированную кухню с комнатой не допустимо, разбор перегородки между ними возможен, но с обязательной установкой на это место двери с плотным притвором. Если при перепланировке будут затронуты газовые коммуникации, перенос труб, газовой колонки, обязательно предварительно согласовать с Мосгазом и выполнить работы их инженерной службой. Проектом можно предусмотреть мероприятия по разбору подоконной зоны с установкой французского окна и остеклением балкона. Остекление балкона на средних этажах на сегодня не требует согласования.
Что нужно
Все виды работ, перечисленные в данной статье, необходимо заранее согласовать перед началом строительных работ и получить от Мосжилинспекции Разрешение на перепланировку с утвержденным Проектом. После окончания ремонта осуществить приемку квартиры по Акту о завершенном переустройстве и внести изменения в документацию БТИ и кадастровый паспорт Росреестра.
Специалисты нашей компании могут рассмотреть перепланировку квартиры в Хрущёвке, дать заключение о возможности согласования и оформить всю документацию под ключ.
Примеры переустройства ванны
Похожие статьи
Варианты перепланировки двухкомнатной квартиры «хрущевского» типа
Двухкомнатная квартира — это наиболее распространенный вид жилья, расположенного в типовых многоэтажных домах. Но, как правило, планировка таких квартир в домах «хрущевского» типа не отличается удобством. И основная претензия собственников – теснота. В таких квартирах очень маленькие кухни, неудобные коридоры, часто – смежные комнаты. Грамотно проведенная перепланировка 2 комнатной хрущевки поможет сделать жилплощадь более комфортной. Для этого следует использовать … Подробнее >>Варианты перепланировок, возможных в трехкомнатных квартирах-хрущевках
В наших городах огромное количество домов, построенных по типовым проектам, разработанным в середине прошлого века.
В народе квартиры в таких домах называют хрущевками. Нужно заметить, что планировка квартир этого типа не отличается удобством, и главный ее недостаток – теснота … Подробнее >>Перепланировка хрущевки — Легкое дело
Перепланировка хрущевки. Все особенности.
Молодежь с трудом ответит на вопрос, кто такой Хрущёв, а вот рожденные его эпохой здания типовой застройки, призванные решить жилищную проблему советских граждан, стоят до сих пор, и видимо, простоят ещё долго. Строили «хрущевки» как временное жилье не очень высокого комфорта, а потому перепланировка квартир в ней и улучшение жилищных условий весьма актуальны в наши дни. Многие задаются вопросом: как сделать перепланировку в хрущевке. Надеемся, наша статья поможет хотя бы частично ответить на этот вопрос.
Перепланировка хрущевки- стоимость согласования.
Стоимость согласования перепланировки квартиры в хрущевке зависит от множества факторов, но прежде всего от вида планируемых работ, а также от округа расположения дома и его типа.
С ценами для наиболее часто встречающихся случаев Вы можете ознакомиться здесь. Для уточнения стоимости согласования именно Вашей перепланировки, пожалуйста, заполните соответствующую форму. свяжитесь с нами по телефону +7 (495) 507-74-67 или отправьте запрос на почту Адрес электронной почты защищен от спам-ботов. Для просмотра адреса в вашем браузере должен быть включен Javascript..
Перепланировка квартиры в хрущевке. Нюансы и особенности.
1. Внутри квартиры нет несущих стен.
Расположение несущих стен в хрущевке.
В 90% случаев внутренние стены квартир в хрущевках являются не несущими перегородками, то есть их можно смело демонтировать при перепланировке без влияния на общее состояние здания. Правда, при этом не следует забывать о требованиях строительных, правовых и санитарно-гигиенических норм, которые необходимо соблюдать. Даже при затрагивании только не несущих перегородок можно нарушить некоторые законы, о которых мы поговорим ниже. Обычно несущими в хрущевке являются ограждающие стены квартиры, все или только некоторые.
Единственное, что может находиться из несущих конструкций внутри квартиры кирпичных домов- это балки, опирающиеся на наружные и внутренние межквартирные несущие стены. Справа на рисунке приведен типичный пример расположения несущих стен в реальной квартире хрущевки (зелёным отмечены несущие стены и диафрагмы жесткости). Многие, как мы уже упоминали, ошибочно полагают, что если они не затрагивают несущих стен, то согласовывать такую перепланировку не надо. На самом деле, перепланировка квартиры-хрущевки с любым изменением конфигурации перегородок влечёт за собой обязанность внесения этих изменений в документы БТИ на квартиру, а следовательно требует и соответствующего согласования. Более того, большинство этих изменений согласовываются по проектам, выполняемых соответствующими организациями с разрешением. Ознакомиться с требованиями к проектам можно здесь .
Более подробно об определении несущих стен в хрущевках Вы можете почитать здесь .
2. Затрагивание санузла.
В большинстве хрущевок традиционно тесными являются ванна и туалет, поэтому практически у всех при перепланировке хрущевки возникает естественное желание объединить их и расширить.
Здесь главное не забывать о пункте 3.8. СаНПиН2.1.2.2645-10 и п.9.22 СП 54.13330.2011, которые говорят о том, что мокрые зоны, такие как туалет, ванна, санузел и др. нельзя расширять за счет кухни и жилых комнат. Такие помещения можно увеличивать только за счет нежилых помещений (коридора, встроенных шкафов, кладовых и т.д.).
В связи с этим при перепланировки квартир в хрущевках довольно часто встречается пограничная ситуация.
Перепланировка хрущевки. Проблемная область.
Выделенная красным область на рисунке слева функционально является коридором, а формально по БТИ отнесена к площади жилых помещений. Поэтому если подходить к вопросу формально, то расширение санузла за счёт этой зоны невозможно. В данном случае лучше согласовывать перепланировку хрущевки в два этапа. Вначале установить перегородку, разделяющую помещение №1 и зону, обозначенную красным и согласовать изменения по эскизу. После этого выделенная зона по документам будет уже однозначно названа в экспликации коридором.
Теперь уже можно осуществлять и согласовывать расширение мокрой зоны за счет его площади. Таким довольно хитрым способом можно согласовывать и некоторые другие способы перепланировок.
Более подробно об объединении и расширении мокрых зон Вы можете прочесть здесь .
3. Демонтаж перегородки между кухней и комнатой.
Перепланировка квартиры-хрущевки. как правило, примечательна ещё одним часто встречающимся фактором. В таких квартирах тесными являются не только санузлы и ванные, но и кухня, поэтому вполне логичным решением при перепланировке хрущевки является её расширение. Тут тоже следует знать о некоторых законах:
а) запрещается переносить или расширять кухню за счет территории жилых комнат в соответствии с пунктом 22 Постановления Правительства РФ от 28.01.2006
Согласованная перепланировка двухкомнатной хрущевки.
б) не допускается демонтировать перегородку между кухней, оборудованной газовой плитой, и жилой комнатой согласно п. 11.17 и п.
11.18 Приложения 1
Постановления №508 Правительства Москвы. И даже устраивать в такой перегородке проём без двери.
К сожалению, почти во всех хрущёвках установлены газовые плиты, а потому желание увеличить маленькие габариты кухни за счёт её присоединения к комнатам натыкается на невозможность осуществления ввиду описанных выше пунктов. Выхода два:
- либо менять газовую плиту на электрическую, что довольно трудозатратно;
- либо отделять жилую комнату от кухни раздвижными перегородками.
Более подробно о таком переустройстве кухонь Вы можете прочесть здесь .
Как видно из всего перечисленного, перепланировка и ремонт хрущевки относятся к достаточно сложным мероприятиям, требующим тщательного планирования и проработки планировки. В целом, к сожалению, такие квартиры, прежде всего из-за своей маленькой площади, дают мало простора для реализации дизайнерской мысли. Безусловно, перепланировка трёхкомнатной хрущевки или перепланировка четырехкомнатной хрущевки в этом плане предоставляют гораздо больше вариантов планировки, чем перепланировка хрущевки с одной или двумя комнатами, что, в общем-то, логично.
Ниже мы решили привести идеи и варианты перепланировки хрущевки, которые были успешно согласованы и на которые были получены соответствующие разрешения (это подтверждается наличием на листе из проекта соответствующего штампа жилищной инспекции). Возможно, некоторые из них совпадают с планировками Ваших квартир, позволят составить мнение о допустимости того или иного переустройства, а, может быть, даже подкинут какую-нибудь стоящую идею к преобразованию Вашей квартиры. На каждой картинке представлен согласованный план перепланировки хрущевки из соответствующего проекта с отметкой демонтируемых и возводимых перегородок. Либо план квартиры до и после переустройства. Демонтируемые перегородки отмечены пунктиром, а возводимые закрашены сплошным цветом. Также советуем Вам прочесть статью о том, как узаконить перепланировку квартиры .
Узаконенные идеи и варианты перепланировки хрущевки.
Перепланировка двухкомнатной хрущевки.
В данном случае приведен типичный вариант перепланировки двухкомнатной хрущевки.
Санузел сделали совместным и расширили на территорию коридора, ведущего в кухню. Вход в кухню предусмотрели из комнаты. Следует отметить, что между ними установлены раздвижные перегородки, о чем говорилось в третьем пункте данной статьи. Благодаря тому, что квартира расположена на последнем этаже, то есть над ней нет другой квартиры, кухню также удалось увеличить за счет уборной.
Перепланировка однокомнатной хрущевки.
Работы, представленные в этом примере практически аналогичны осуществленным ремонтным работам из предыдущего примера с той только разницей, что в данном случае проиллюстрирован вариант перепланировки однокомнатной хрущевки. В результате удалось получить просто огромный по меркам хрущевок санузел, да ещё и в однушке. В него уместилась не только ванна, но и душ со стиральной машиной, что в хрущевках встречается крайне редко.
Перепланировка хрущевки — 2 комнаты.
Перепланировка содержит похожие мероприятия, что и в предыдущих примерах.
Отличительной особенностью является отсутствие дверей или перегородки между кухней и комнатой. Это стало возможным благодаря тому, что в доме был выполнен капитальный ремонт и во всех кухнях здания были установлены электрические плиты. К сожалению, такие капитальные ремонты встречаются в хрущевках очень редко.
Перепланировка 2-х комнатной хрущевки.
На рисунке приведена интересная перепланировка 2-комнатной хрущевки. Газифицированная кухня увеличена на площадь комнаты на толщину перегородки. Так как это расширение осуществлено лишь на толщину перегородки, то кухня по-прежнему не расположена над жилой комнатой соседей снизу, а потому формально не нарушает соответствующий закон. Однако, на практике возможность осуществления такого пограничного случая сильно зависит от позиции по данному вопросу начальника жилищной инспекции того округа, в котором расположена квартира.
Перепланировка 1-комнатной хрущевки.
На рисунке представлена перепланировка однокомнатной квартиры.
Такие малогабаритные квартиры с трудом поддаются каким-либо существенным изменениям ввиду своей небольшой площади, однако и из них иногда удается сделать вполне комфортабельное жилье. Перепланировка однушки в хрущевке обычно содержит простые работы. К примеру, небольшое увеличение площади санузла, если это позволяют сделать размеры коридора; ликвидация или устройство встроенных шкафов; снос стены между комнатой и кухней.
Перепланировка угловой однокомнатной хрущевки.
Угловые квартиры обычно хороши тем, что в них присутствует дополнительное окно, которое позволяет разделить одну большую комнату на две меньшие с отдельным окном в каждой. Таким образом чаще всего осуществляется перепланировка однокомнатной хрущевки в двухкомнатную. Но в данном примере, собственники не пошли таким путём. Они немного увеличили санузел, а также установили рольставни вместо перегородки между комнатой и кухней, немного сдвинув их в сторону последней, что было допустимо, так как квартира расположена на последнем этаже.
Перепланировка двухкомнатной квартиры в хрущевке.
При выполнении этого ремонта в квартире были осуществлены схожие мероприятия, что и в предыдущих примерах. Отличительной особенностью является тот факт, что между комнатой и кухней установлены большие раздвижные перегородки, но при этом от коридора кухня ничем не отделена, что никак не запрещено законом.
Перепланировка трехкомнатной квартиры в хрущевке.
В данном случае опять же санузел был выдвинут в коридор, а кухня добавлена к гостиной с созданием единого пространства гостиной-столовой. Пример примечателен тем, что на планах БТИ квартиры совсем не была указана плита, а потому пришлось брать соответствующую справку в управляющей компании о том, что в доме установлены электрические плиты.
Перепланировка трехкомнатной хрущевки.
Данный пример очень специфичен перестановкой газифицированной кухни в коридор. Для согласования данного мероприятия пришлось заглушить в квартире газовый стояк и установить вместо газовой плиты электрическую.
Только благодаря такой замене удалось осуществить согласование данной перепланировки.
Перепланировка хрущевки- 3 комнаты.
В данной квартире для согласования присоединения кухни к комнате решили установить рольставни. Это весьма удобное решение. Стоят они недорого и легко демонтируются, а перед продажей или получением документов на квартиру легко могут быть установлены назад. В принципе, их даже не обязательно демонтировать, а просто держать в открытом состоянии.
Перепланировка 3-х комнатной хрущевки.
Данная перепланировка трешки в хрущевке примечательна тем, что из санузла пришлось выполнить второй выход в коридор, так как делать выход из помещения, оборудованного унитазом, сразу в жилую комнату запрещено по санитарно-гигиеническим нормам.
Перепланировка четырехкомнатной хрущевки.
Данный пример, к сожалению, уже является анахронизмом. Раньше в некоторых округах допускалось присоединять газифицированную кухню к другим помещениям, если назвать их в экспликации нежилыми.
Сейчас такие уловки уже не проходят.
Мы рассмотрели большое количество согласованных примеров перепланировки квартир в хрущевках. В завершение нашей статьи мы хотим привести несколько примеров разрешений на такие переустройства. Такое разрешение выдается вместе с проектом и говорит о том, что ремонт законен и может быть осуществлен.
Перепланировка 3 комнатной хрущевки- распоряжение.
Перепланировка двушки-хрущевки- распоряжение.
О компании «РЕСОГ»
Письмо председателя Хрущева президенту Кеннеди, 27 октября 1962 г. — Кубинский ракетный кризис
Департамент
Штат
Отдел языковых услуг
(перевод)
ЛС № 46236
Т-94/Т-24
Русский
Рельефная печать СССР
Дж. Кеннеди,
Президент Соединенных Штатов
Копия У Тану, исполняющему обязанности Генерального секретаря ООН
Уважаемый г-н. Президент,
Я учился
с большим удовлетворением ваш ответ г.Что касается
меры, которые должны быть приняты, чтобы избежать контакта между нашими
судов и тем самым избежать непоправимых и фатальных
последствия.
Этот разумный шаг с вашей стороны укрепляет
я верю, что вы проявляете заботу о сохранении
мира, что я с удовлетворением отмечаю.
уже есть сказал, что наш народ, наше правительство и я лично, как Председателя Совета Министров, касаются исключительно чтобы наша страна развивалась и занимала достойное место среди всех народов мира в экономической конкуренции, в развитии культуры и искусства, а также в повышении уровень жизни народа.Это самое благородное и необходимое поле для состязания, и как победитель, так и побежденный извлечет из этого только пользу, потому что означает мир и увеличение средств, которыми живет человек и находит удовольствие.
В вашем
заявление, в котором вы выразили мнение, что основной целью было
не просто договориться и принять меры к
предотвратить контакт между нашими судами и, следовательно,
углубление кризиса, которое могло бы в результате такого
контакты разжигают военный конфликт, после которого все
переговоры были бы излишними, потому что другие силы и
тогда вступят в силу другие законы — законы войны.
я
согласен с вами, что это только первый шаг. Главный
необходимо нормализовать и стабилизировать
состояние мира между государствами и между народами.
я понимаю ваша забота о безопасности Соединенных Штатов, мистер Президент, потому что это основная обязанность Президента. Но и нас беспокоят эти же вопросы; я несу эти же обязанности в качестве Председателя Совета Министры У.ССР Вы были встревожены фактом что мы помогли Кубе оружием, чтобы укрепить его обороноспособность — именно обороноспособность способности, потому что каким бы оружием она ни обладала, Куба нельзя с тобой равняться, так как разница в величине так здорово, особенно с учетом современных средств разрушение. Нашей целью была и остается помощь Кубе, и нет можно оспаривать гуманность наших мотивов, которые направлена на то, чтобы позволить Кубе жить мирно и развиваться так, как желают его люди.
Вы хотите
обеспечить безопасность своей страны, и это
понятно. Но и Куба хочет того же; все
страны хотят сохранить свою безопасность.
Но как мы,
Советский Союз, наше правительство, дать оценку вашим действиям
которые выражаются в том, что вы окружили
Советский Союз с военными базами; окружили наших союзников
военные базы; разместили военные базы буквально вокруг нашего
страна; и разместили там свое ракетное вооружение? Это
нет секрета.Ответственные американские лица открыто заявляют
что это так. Ваши ракеты расположены в Британии,
расположены в Италии и направлены против нас. Ваши ракеты
находятся в Турции.
Вы
беспокоит Куба. Вы говорите, что это беспокоит вас, потому что
это 90 миль по морю от побережья Соединенных Штатов Америки
Америка. Но к нам примыкает Турция; наши часовые патрулируют назад и
вперед и увидеть друг друга. Считаете ли вы тогда, что вы
имеют право требовать безопасности для своей страны и
снятие оружия вы называете наступательным, но не
предоставить такое же право нам? Вы разместили деструктивные
ракетное оружие, которое вы называете наступательным, в Турции,
буквально рядом с нами.Как же тогда признание наших равных
военного потенциала можно примирить с таким неравным
отношения между нашими великими государствами? Это непримиримо.
Хорошо, г-н. Президент, вы согласились, чтобы наши представители [ sic ] встретиться и начать переговоры, очевидно, при посредничестве У Тан, исполняющий обязанности Генерального секретаря ООН. Следовательно, он в какой-то степени взял на себя роль посредником и считаем, что он сможет справиться с этой ответственной миссии, при условии, конечно, что каждый сторона, вовлеченная в этот спор, проявляет добрую волю.
Думаю, будет можно быстро положить конец спору и нормализовать ситуации, и тогда людям стало легче дышать, учитывая, что государственные деятели, на которых возложена ответственность, трезвого ума и осознавать свою ответственность в сочетании со способностью решать сложные вопросы и не довести дело до военной катастрофы.
поэтому я делаю
это предложение: мы готовы вывести с Кубы средства
которые вы считаете оскорбительными.Мы готовы нести это
и сделать это обещание в Организации Объединенных Наций. Ваш
представители сделают заявление о том, что
США, со своей стороны, учитывая беспокойство
и беспокойство Советского государства, устранит аналогичную
значит из Турции.
Давайте договоримся о периоде
времени, необходимого вам и нам, чтобы добиться этого. И,
после этого лица, доверенные Службой безопасности ООН
Совет мог проверить на месте выполнение
взятые залоги.Разумеется, с разрешения правительства
Кубы и Турции необходимо для вступления в те
странах этих представителей и для проверки
выполнение обещания каждой из сторон. Конечно
было бы лучше, если бы эти представители наслаждались
доверие Совета Безопасности, а также ваше и
мой — как Соединенных Штатов, так и Советского Союза — а также
это Турция и Куба.Я не думаю, что это было бы
трудно подобрать людей, которые пользовались бы доверием и
уважение всех заинтересованных сторон.
Мы, в производстве
это обещание, чтобы дать удовлетворение и надежду
народов Кубы и Турции и укрепить их
уверены в своей безопасности, сделают заявление в течение
рамках Совета Безопасности о том, что
Советское правительство дает торжественное обещание уважать
неприкосновенность границ и суверенитета Турции, не
вмешиваться в его внутренние дела, а не вторгаться в Турцию,
не предоставлять нашу территорию в качестве плацдарма для таких
вторжение, и что оно также будет сдерживать тех, кто
рассмотреть возможность совершения агрессии против Турции либо
с территории СССР или с территории
других соседних с Турцией государств.
Соединенные Штаты Правительство штата сделает аналогичное заявление в рамках Совета Безопасности в отношении Кубы. Будет заявить, что Соединенные Штаты будут уважать неприкосновенность границ Кубы и ее суверенитета будет обязуюсь не вмешиваться в его внутренние дела, не вторгнуться на саму Кубу или сделать ее территорию доступной в качестве плацдарм для такого вторжения, а также будет сдерживать тех, кто может замышлять совершение агрессии против Куба либо с территории Соединенных Штатов, либо с территории других соседних с Кубой государств.
Конечно, для это мы должны были бы прийти к соглашению с вами и указать определенный срок. Условимся о каком-то периоде время, но без ненужной задержки — скажем, в течение двух или трех недели, не более месяца.
Средства
расположенных на Кубе, о которых вы говорите и которые вас беспокоят,
как вы заявили, находятся в руках советских офицеров.
Поэтому любое случайное их использование в ущерб
США исключены.Эти средства находятся в
Кубе по просьбе кубинского правительства и предназначены только для
целей обороны.
Поэтому, если нет вторжения
Куба, или нападение на Советский Союз, или любое другое наше
союзниками, то конечно эти средства не являются и не будут
угроза кому-л. Ибо они не предназначены для нападения.
Если вы согласен с моим предложением, г-н Председатель, тогда мы пошлем наших представителей в Нью-Йорке, в Организации Объединенных Наций и дал бы им исчерпывающие инструкции для того, чтобы соглашение может быть достигнуто быстрее.Если вы также выберете своих людей и дать им соответствующие указания, то этот вопрос можно быстро решить.
Зачем мне
сделать это? Потому что весь мир сейчас насторожен и
ожидает от нас разумных действий. Самая большая радость для всех
народам было бы объявлением о нашем соглашении и о
искоренение возникшего спора. я прилагаю
большое значение этому соглашению, поскольку оно могло
послужить хорошим началом и, в частности,
легче договориться о запрещении испытаний ядерного оружия.Параллельно можно было бы решить вопрос об испытаниях
моды, не связывая одно с другим, потому что
это разные вопросы.
Однако важно, чтобы
соглашение по обоим этим вопросам, с тем чтобы представить
человечество прекрасным подарком, а также порадовать его
новость о том, что достигнуто соглашение о прекращении
ядерные испытания и что, следовательно, атмосфера не будет
дольше отравиться.Наша и ваша позиция по этому вопросу
очень близко друг к другу.
Все это может послужить хорошим толчком к поиску взаимоприемлемые договоренности по другим спорным вопросам по которому мы с вами обменивались мнениями. Эти вопросы пока не решены, но ждут срочного решение, которое прояснило бы международную атмосферу. Мы готовы к этому.
Это мои предложения, господин председатель.
С уважением ваш,
[с] Н.
Хрущев
Н. Хрущев
27 октября 1962 г.
Интервью с Никитой Хрущевым
3 октября 1957 г.
НЬЮ-ЙОРК. Лучше всего начать эту серию статей о Советском Союзе с того, что позволю Никите С. Хрущеву, лидеру Коммунистической партии СССР, сказать самому.
Меня попросили представить свои вопросы, но г.У Хрущева их не было до него, когда я появился. И он отвечал на мои вопросы так, как будто говорил совершенно спонтанно.
Эта первая статья будет охватывать лишь частично некоторые из записанных ответов, и хотя у меня есть его ответы на русском языке, я могу дать вам только перевод в том виде, в каком он был сделан моей переводчицей, г-жой Анной Ларовой, которая сказала мне, что она перевела для мой муж в Ялте.
Я начал с того, что попросил ее передать г-ну Хрущеву, что я благодарен ему за то, что он нашел время, чтобы увидеть меня, когда он был в отпуске, и добавил, что мне очень понравилось и меня очень заинтересовала моя поездка в его страну.Г-н Хрущев ответил: «Политики никогда не отказываются от политических обязательств».
Вот мои вопросы и его ответы:
РУЗВЕЛЬТ: Я приехал в СССР для газет, для которых пишу, и для того, чтобы использовать ту информацию, которую я смог собрать, для лекций, которые я буду читать в наступающем году, но я надеюсь, что, находясь здесь, я смогу лучше понять и прояснить некоторые вопросы мы получаем дома от некоторых наших людей, которые не понимают некоторых вещей, которые они слышат об СССР.
ХРУЩЕВ: Я ценю ваш приезд сюда и хочу поговорить о президенте Франклине Рузвельте. Мы уважаем его и помним его деятельность, потому что он первым установил дипломатические отношения между США и СССР. Президент Рузвельт прекрасно понимал необходимость таких отношений между нашими двумя странами.
Это был великий человек, способный человек, понимающий интересы своей страны и интересы Советского Союза. У нас было общее дело против Гитлера, и мы очень ценим то, что Франклин Рузвельт понял эту задачу, которая была общей задачей наших двух стран.Я очень рад приветствовать вас на нашей земле и побеседовать здесь.
РУЗВЕЛЬТ: Господин Хрущев, могу я задать заданные мною вопросы? Тогда, если у вас есть ко мне вопросы, я с удовольствием постараюсь на них ответить, и, может быть, у нас будет еще неформальный разговор, а не прямое цитирование?
ХРУЩЕВ: Да, миссис Рузвельт, пожалуйста.
РУЗВЕЛЬТ: Дома люди сказали бы: «Как Советский Союз ожидает от нас разоружения без инспекции, когда он заставил нас перевооружаться после Второй мировой войны? Мы сократили нашу армию с 12 000 000 до 1 000 000 человек.
«Это будет один из первых вопросов, сэр.
ХРУЩЕВ: Я полагаю, госпожа Рузвельт, что у нас разные точки зрения на эту жалобу на вооружения. Мы не согласны с вашей концепцией. Мы считаем, что демобилизация проходила в США и в СССР.
Вы упомянули, что у вас было 12 миллионов солдат, а у нас в стране все мужчины и женщины были мобилизованы. В нашей стране погибло примерно то количество людей, о котором вы говорите, составляло армию в вашей стране, почти столько же человек.Госпожа Рузвельт, я не хочу вас обидеть, но если вы сравните потери вашей страны и потери нашей, то ваши потери примерно равны нашим потерям в одной большой кампании, в одной большой атаке немцев.
Как вы знаете, миссис Рузвельт, какие ужасные руины и разрушения мы получили, потому что потеряли нашу добычу, нашу металлургию. Мы потеряли наши города. Вот почему наша страна так стремилась к установлению мира и установлению прочного мира. Ни одна страна не желала этого так горячо, как наша страна.
Если говорить о демобилизации, то ее хотели лишь некоторые круги в вашей стране.Другие думали и верили, что Советская страна погибнет как социалистическое государство, поэтому они только и надеялись, что она погибнет, что она умрет.
РУЗВЕЛЬТ: Я не совсем понимаю этого. Вы хотите сказать, г. Хрущев, что, по-вашему, мы думали, или, вернее, верили некоторые круги, что все социалистические страны погибнут?
ХРУЩЕВ: Именно так. Но эти надежды не оправдались, и вы видите теперь, что наше социалистическое государство возникло из руин, наладило свою экономику и стало еще сильнее.
РУЗВЕЛЬТ: Я понимаю, г-н Хрущев, но Советы держали под ружьем гораздо большую часть людей, чем мы в то время.
(Доктор Давид Гуревич, который ездил со мной в Россию, делал запись разговора и одновременно прослушивал, чтобы убедиться в правильности перевода, так как он знал русский язык и ему было разрешено фотографировать. Поэтому он вмешался сюда, чтобы сказать: «Не только пропорция, но и абсолютные цифры были гораздо больше — 6 миллионов человек под ружьем в Совете.
«)
ХРУЩЕВ: Доктор Гуревич, вы можете прекрасно знать численность вашей армии, но не настолько уверены в численности нашей армии. Вы этого не знаете. (Обращаясь к госпоже Рузвельт) Я не отрицаю, что наша армия была больше вашей. Мы подошли к этому вопросу тихо, спокойно. Тогда на это можно смотреть разумно и легко понять.
Возьмите карту и посмотрите на географическое положение или ситуацию в нашей стране. Это колоссальная территория. Миссис Рузвельт, если вы возьмете Германию или Францию, просто маленькие страны, которые держат свои армии либо для защиты своего Востока, либо своего Запада, это легко.У них может быть небольшая армия, но если мы будем держать нашу армию на Востоке, трудно будет добраться до Запада, понимаете, чтобы использовать эту западную армию на Востоке, потому что наша территория так велика. Или армия, которая находится на севере, не может быть использована на юге.
Итак, чтобы быть уверенными в своей безопасности в нашем государстве, мы должны держать большую армию, что для нас не так просто.
Когда люди говорят о границах, они имеют в виду 3000 километров, то есть расстояние между континентами. Но когда мы двигаем нашу армию с востока на запад, это означает 3000 километров.
РУЗВЕЛЬТ: Я все это понимаю, конечно, но вам нечего бояться Севера. Я понимаю, что в Ялте поражение Германии было принято, и вы не хотели, чтобы Германия создавалась как военная держава, и вы хотели, чтобы между вами и Германией была группа нейтральных стран. Я понял тогда, что эти страны должны были быть свободными странами, но тесно связанными с Советским Союзом, так как СССР действительно думал о своей защите.
Сегодня, конечно, Великобритания, Франция и Германия не представляют военной угрозы.Я не говорю, что они могли бы не стать такими, но они не сегодня. Они чисто на оборонительной основе, поэтому я думаю, что можно очень спокойно обсудить, как такая страна, как Советский Союз, может быть в безопасности, в чем я прекрасно понимаю необходимость и желание, и все же можно было бы не иметь в Советском Союзе армия, которая может быть наступательной армией, потому что это пугает остальной мир.
ХРУЩЕВ: Что вам сказать в ответ, госпожа Рузвельт? Когда мы увеличиваем руки, это значит, что мы боимся друг друга.Русские войска до революции никогда не приближались к Великобритании и никогда не входили в Америку. Даже в старые времена они никогда не приходили к Соединенным Штатам Америки, но войска США подошли к нашему Дальнему Востоку, японские войска были на нашем Дальнем Востоке во Владивостоке, французские войска в нашем городе Одессе, и поэтому мы должны иметь армия. Ваши войска приближаются к нашей территории, а не мы к вашей.
Мы никогда не были в Мексике или Канаде, но ваши войска были там, поэтому мы должны иметь армию на случай опасности.До того времени, когда из Европы будут выведены войска и ликвидированы военные базы, конечно, разоружение не удастся.
РУЗВЕЛЬТ: Фактический тип вооружения, который сегодня важен, изменился. Это не то, что было в старые времена. Мы сокращаем нашу армию, но что сегодня имеет значение, так это атомное оружие, и поэтому я думаю, что акцент должен быть сделан на том, как мы можем прийти к соглашению.
4 октября 1957 г.
ЦИНЦИННАТИ — Пытаясь выяснить, действительно ли Никита С.Хрущев, глава Коммунистической партии Советского Союза, считает, что коммунистический мир когда-нибудь сможет жить в мире со своими демократическими соседями. Я задавал ему вопросы по этому поводу в нашем недавнем записанном интервью в Ялте.
Продолжая вчерашний день, вот эта часть интервью:
Господин Хрущев, я хотел бы продолжить и задать следующий вопрос.
Сначала мы не относились к СССР подозрительно. Мы вместе сражались на войне. Я знаю, что мой муж, и я думаю, что президент Трумэн действительно надеялся, что мы сможем прийти к пониманию.
Теперь в США почувствовали, что некоторые соглашения, заключенные в Ялте, не соблюдаются строго СССР, и подозрения начали расти. С сожалением должен сказать, что я думаю, что это подозрение было вызвано отчасти тем, что между двумя странами было так мало общения.
Боюсь, что сегодня нам действительно нужно что-то сделать с обеих сторон, прежде чем мы начнем восстанавливать доверие, поэтому мы хотели бы — даже если вы считаете наше предложение о какой-то проверке нецелесообразным, так как любая из сторон может скрывать, что они производя — нам все же хотелось бы чувствовать, что предпринимается попытка прийти к какому-то соглашению, хотя ни один из нас не считал наше соглашение вполне адекватным.
Наш народ хотел бы, чтобы Советы были более готовы рассмотреть предложение, которое не является их собственным, а является предложением Запада.
ХРУЩЕВ: Что касается Ялтинского соглашения, у нас разные точки зрения на то, кто это соглашение нарушил. Мы не можем согласиться с политикой США, что они хотят освободить европейские и восточные страны от социализма. Они не только объявили об этом, но и дали на это деньги. Они установили радиостанции и наладили пропаганду.
Нас обвиняют в том, что мы ответственны за то, что Чехословакия установила в своей стране социалистический режим. Но хорошо известно, что когда в Чехословакии случилась революция, на их территории не было ни одного русского солдата.
Вы знаете, госпожа Рузвельт, что произошло в Греции — воля народа была уничтожена английскими танками. Даже сам господин Черчилль проехал по стране на танке, и так была уничтожена воля народа. После ухода английских войск вошли американские войска.
РУЗВЕЛЬТ: Вы не возражаете, если я скажу, что мы считали, что это не было волей народа? Мы считали, что большинство народа хочет вернуть своего короля и не хочет социалистов.
Понимаете, в этом разница между нами.
Итак, я хотел бы перейти к моему третьему вопросу, а именно: верит ли все еще правительство Советского Союза в то, что коммунистический мир должен быть построен? Верят ли они, что две системы могут существовать в мире, потому что в этом суть всего вопроса?
Вы говорите, что мы пытались удержать эти нации от превращения в социалистические нации, но именно потому, что мы думаем, что Советский Союз хочет распространиться по всему миру не только с помощью солдат, но и с помощью других агентов, наша подозрительность возросла.
ХРУЩЕВ: Я тоже агент?
РУЗВЕЛЬТ: Насколько я знаю, вы могли быть им. Но дома поверили бы, что ты устроил агентов.
ХРУЩЕВ: Кем устроено?
РУЗВЕЛЬТ: Я думаю, что существует постоянное усилие — скажем, внушение — со стороны людей, что мир должен быть именно таким. Мы не верим, что мир должен быть именно таким. Мы можем верить по-своему, а вы по-своему.
ХРУЩЕВ: Вот почему мы привели наших агентов — агентов разных философий — в ООН.
РУЗВЕЛЬТ: Могут ли они жить в одном мире, не пытаясь подорвать друг друга и, следовательно, угрожая всем, или мы будем продолжать эту постоянную угрозу войны, потому что мы оба думаем, что другой пытается продвигать только свою философию для весь мир?
ХРУЩЕВ: Два вопроса, госпожа Рузвельт, два вопроса. Первый о двух философиях, которые могут жить в мире.Без сомнения, миссис Рузвельт, мы должны жить в мире, мы должны жить, мы должны. (Доктор Дэвид Гуревич вмешивается: мы не только должны жить в мире, мы хотим жить в мире, и мы стремимся жить в мире в США)
РУЗВЕЛЬТ: Я согласен.
ХРУЩЕВ: Мы тоже хотим иметь, видите ли, что-то общее в нашей хозяйственной деятельности, в нашей культурной жизни.
РУЗВЕЛЬТ: Должна ли ваша философия одна распространяться по всему миру, потому что это кажется девизом наверху вашей газеты, например, «Правды»?
ХРУЩЕВ: Да.У нас есть девиз: «Пролетарии всего мира, соединяйтесь». Это была не моя идея. Мы расходимся во мнениях о наших зарубежных системах.
Я никогда не скрывался от таких вопросов.
Это мое заявление, которое, я уверен, я сказал вашей радиовещательной системе Колумбии: Коммунизм победит во всем мире. Это научно основано на трудах Карла Маркса, Энгельса и Ленина. Ваши люди в США — культурные люди, так что вы знаете, что происходят всевозможные изменения в экономике и как меняются отношения между нациями — феодализм, капитализм, затем социализм.И высшим государством будет коммунизм. Как известно, в этом смысл истории.
Когда государство меняет свой порядок, это дело самих людей. Мы против любой военной попытки ввести коммунизм или социализм в какой-либо стране, а также против вашего вмешательства в восстановление капитализма в нашей стране путем военной интервенции. Именно поэтому мы твердо выступаем за сосуществование и сотрудничество.
РУЗВЕЛЬТ: Я согласен, что в мире происходят изменения.Я согласен с тем, что никакие военные действия не должны привести к этим изменениям. Я бы также сказал, что необходимо, чтобы наша страна не вмешивалась в дела коммунистических стран, кроме как посредством мирного обмена и наблюдения.
Но это должно относиться и к социалистическим странам. Если есть стремление насадить коммунистические идеи, очень трудно жить в мирной атмосфере.
ХРУЩЕВ: Если говорить о вмешательстве, госпожа Рузвельт, то вы знаете, чем занимается в этой сфере ваш госдеп.Пусть г-н Даллес сообщит, что имел в виду г-н Хендерсон, когда он посетил Турцию и остальные страны Дальнего Востока. У мистера Хендерсона была довольно грязная миссия.
РУЗВЕЛЬТ: Я думаю, что вся ситуация на Ближнем Востоке была очень плохой, но мы чувствуем, что Советский Союз начал ее, когда они впервые допустили чехословацкое оружие в Каир. Сегодня мы знаем, что египтяне применяли советское или спутниковое оружие.
Вы должны знать, что египтяне уже давно говорили Израилю, что собираются сбросить их в море.Израиль был создан как государство Организацией Объединенных Наций. Это государство могло бы помочь, благодаря передовым технологиям, улучшить условия жизни всего ближневосточного региона, если бы однажды все эти народы сели вместе для мирного обсуждения.
Но теперь вы наращиваете сирийское вооружение, чтобы сохранить то, что вы называете нейтралитетом Сирии.
На днях я прочитал здесь в газете, что мы передали Израилю 117 миллионов долларов и что мы приказали Израилю переместиться в демилитаризованную зону между Сирией и Израилем.Так вот, мы, может быть, и дали деньги, но мы никогда не говорили им, чтобы они перешли в демилитаризованную зону. В этом я уверен.
Я считаю, что эту ситуацию уже давно могли бы значительно улучшить как Советы, так и мы сами. Из-за потока советского оружия в Египет и Сирию мы теперь чувствуем, что, когда другие арабские государства просят оружия, мы должны им помочь.
Мне кажется, что если бы никто из нас не давал оружия, а помогал улучшать условия жизни людей, мы бы делали что-то полезное.Сегодня нет ничего, кроме гонки за тем, кто из нас сможет создать этот баланс военной мощи.
ЦИНЦИННАТИ — Я допросил Никиту С. Хрущева, главу Коммунистической партии Советского Союза, во время моего интервью с ним в Ялте о советской позиции на Ближнем Востоке, и он обвинил Соединенные Штаты в первой продаже оружия странам в этом регионе.
.
5 октября 1957 г.
Вот продолжение интервью из двух моих предыдущих рубрик:
РУЗВЕЛЬТ: Не можем ли мы пересмотреть всю нашу позицию на Ближнем Востоке?
ХРУЩЕВ: Госпожа.Рузвельт, вы не знаете о предложениях, которые были сделаны Советским Союзом, что ни одна страна не должна продавать оружие какой-либо стране Ближнего Востока. США отказались.
(Доктор Дэвид Гуревич, вмешивается: Мы отказались только после того, как Советский Союз уже отправил оружие в Египет и Сирию, так что баланс уже был уничтожен.)
ХРУЩЕВ: Вы начальник военного снабжения, доктор Гуревич? Я не думаю, что вы знаете точную ситуацию.
РУЗВЕЛЬТ: Я не думаю, что кто-либо из нас знает точную ситуацию, но, тем не менее, она может быть поднята на конференции по разоружению или в Организации Объединенных Наций.
РУЩЕВ: Я вас спрашиваю: кто первым начал продавать оружие в страны — мы или вы? Как насчет Пакистана?
РУЗВЕЛЬТ: Думаю, да.
Пакистан — это не Ближний Восток. Это дальше.
(Доктор Гуревич вмешивается: Вопрос был: кто первый продал оружие?)
РУЗВЕЛЬТ: Я бы сказал, что мы считали, что Советский Союз первым начал отправлять оружие в другие страны. Я думаю, что единственное, что можно сделать сегодня с ситуацией, это поднять ее в ООН.и попытаться прийти к некоторым соглашениям.
ХРУЩЕВ: Вы не ответили на мой вопрос. Вы не любите коммунистов, и я ничего против этого не имею, потому что я могу не любить людей, стоящих на других платформах. Но люди могут быть честными. Поэтому мой вопрос: Кто первым продавал оружие другим странам и не просто продавал, а поставлял безвозмездно? Кто был первым?
Я очень уважаю вас и ценю деятельность вашего великого мужа Франклина Рузвельта, но весь мир знает, что У.S.A. первой начала поставки оружия, поэтому я надеялся на честный разговор, иначе мы не можем быть уверены в интерпретации этого разговора.
РУЗВЕЛЬТ: Мы возвращаемся к плану Маршалла?
ХРУЩЕВ: Неважно, план Маршалла или любой другой план.
Я знаю, что США снабжали оружием всех наших врагов.
РУЗВЕЛЬТ: План Маршалла делал акцент на экономическом развитии внутри стран.
ХРУЩЕВ: Оружие — это тоже экономическая помощь?
РУЗВЕЛЬТ: Я согласен с тем, что многие страны на Западе получили оружие, и я вижу, как Советский Союз мог чувствовать, что оно было предоставлено против них, но мы в США.С. сказал бы, что мы дошли до того, что начали чувствовать военные намерения Советского Союза против Запада.
ХРУЩЕВ: Для чего поставлялось оружие? У нас никогда не было их для чаепитий.
РУЗВЕЛЬТ: Я думаю, наши первые подозрения возникли во время переброски по воздуху в Берлин, когда Советы, казалось, пытались нас вытеснить. Я допускаю, что мы могли ошибаться, но я также думаю, что вы ошибались. Побывав здесь, я понял, что ваш народ не хочет войны.
ХРУЩЕВ: Если вы говорите, что народ не хочет войны, то кто хочет войны — его представители?
РУЗВЕЛЬТ: Возможно, правительство.
Ибо с обеих сторон они делают то, что, по их мнению, служит защите народа. Это происходит в нашей стране и, вероятно, происходит в вашей.
ХРУЩЕВ: Это происходит в вашей стране.
РУЗВЕЛЬТ: Если да, то это также происходит и в вашем.
ХРУЩЕВ: Точно не в моей стране.
РУЗВЕЛЬТ: О, это так.Правительства почти такие же.
ХРУЩЕВ: Знаки есть. Есть логика; есть опыт, так что можем проверить. Чьи войска подходят к границе? Советские войска приближаются к границе США? Это американские войска подходят к границе Советского Союза. Да, они есть.
РУЗВЕЛЬТ: Мы не пытаемся войти в Советский Союз.
ХРУЩЕВ: Стараются.
РУЗВЕЛЬТ: Мы не пытаемся. Но это может быть только защитная позиция, если мы хотим иметь хоть какое-то дружеское сосуществование.Мы не можем продолжать вооружать обе стороны. Можем ли мы работать над большим обменом людьми на каждом уровне, чтобы достичь большего понимания?
ХРУЩЕВ: Я удивлен, госпожа Рузвельт.
Возможно, вы не совсем хорошо осведомлены о ситуации. Мы никогда не отказываемся. Мы всегда разрешаем людям приезжать сюда, но вы никогда не даете визу нашим гражданам.
РУЗВЕЛЬТ: Мы не всегда разрешаем коммунистам приезжать в США. Вы также не всегда разрешаете людям покидать вашу страну, даже если нам удается получить для них визы.
ХРУЩЕВ: Скажите, кого мы сюда не пустили.
РУЗВЕЛЬТ: Я не говорю, что вы не разрешаете людям приезжать в СССР, но вы очень долго выдаете им визы.
Со своей стороны, вы не хотели принимать наши отпечатки пальцев. Мы не чувствовали никакого вреда в снятии отпечатков пальцев. Побывав здесь, я понимаю ваши чувства и поэтому рад, что теперь можно отказаться от положения. Что нас беспокоит, так это трудности, с которыми сталкиваются люди, желающие выехать из Советского Союза даже в гости.
ХРУЩЕВ: Мы разрешаем приходить сюда всем, как бы они ни обвиняли Советский Союз. Тем не менее, мы позволяем ему прийти сюда и посмотреть, что здесь происходит.
Мы не боимся.
РУЗВЕЛЬТ: Я бы резюмировал чувства людей в США, сказав, что именно то, что Советы сделали в Берлине, вызвало наши подозрения. К ним добавились Северная Корея, Северный Вьетнам, Египет и Сирия. Непонимание выросло, и обе стороны испытывают страх. Нам нужно будет сделать что-то, чтобы создать доверие.Единственное, что можно сделать, — это более широкий обмен людьми.
ХРУЩЕВ: Полностью согласен, госпожа Рузвельт.
РУЗВЕЛЬТ: Есть ли у вас какие-либо предложения или вопросы, чтобы задать мне?
ХРУЩЕВ: Мы много раз заявляли о наших целях. Но США привыкли говорить, диктовать, поэтому они говорят только об условиях, которые они примут. Я хочу объяснить, что такое слова и что такое дела. Где войска и чьи это войска?
РУЗВЕЛЬТ: Если бы мы могли на мгновение перестать думать об атомном оружии, у нас все еще была бы в СССР очень большая постоянная армия, которая могла бы быстро передвигаться по Европе, и это вызывает страх у европейцев, если у них нет защиты.
ХРУЩЕВ: Было время, когда в Германии, Англии и Франции не было американской армии, а наша армия была намного больше, но мы ничего не делали. Мы не настолько глупы, чтобы делать трюки. Мы никогда не предпринимали никаких покушений против этих стран.
РУЗВЕЛЬТ: Когда вы читаете газету в Советском Союзе, вы находите очень мало новостей о внешнем мире. Каждое упоминание о США связано с чем-то плохим, что там произошло. Например, единственные новости, которые я видел, касались того, что произошло в Литл-Роке, штат Арканзас., по интеграции школ, но эта проблема затрагивает примерно семь из 48 штатов.
ХРУЩЕВ: Но семь штатов — это США Америки.
РУЗВЕЛЬТ: Только небольшая часть.
ХРУЩЕВ: У нас тоже есть маленькие республики. Они составляют все государство СССР и являются равноправными.
РУЗВЕЛЬТ: У нас нет централизованного контроля, поэтому наши штаты имеют определенные права.
ХРУЩЕВ: В нашей стране каждая республика имеет свои права.
Они независимы. Но вернемся к вопросу о том, что вы говорите об СССР. Вы пишете что-нибудь хорошее в своих газетах?
РУЗВЕЛЬТ: Я думаю, что наступило улучшение, и не совсем то очернение, которое я нахожу здесь в ваших газетах. Но хочу добавить, что я не нахожу в народе неприязни к нам. Они были добры и приветливы.
РУЗВЕЛЬТ: Вы беспокоитесь, сэр, о большем взаимном экономическом обмене?
ХРУЩЕВ: Да.Не потому, что нам это нужно, а потому, что экономическое общение — лучший способ улучшить отношения. Вы не хотите иметь торговлю с нашей страной, потому что не хотите выдавать нам военные секреты. Но это не беда, ведь у нас есть атомное оружие. Мы не собираемся покупать у вас оружие, но будем рады торговать с вами.
(Здесь доктор Гуревич вмешался и сказал: что еще можно сделать, чтобы улучшить наши отношения?)
РУЗВЕЛЬТ: Это то, что я больше всего хочу узнать.
ХРУЩЕВ: Скажите правду народу США. Скажите правду о Советском правительстве и о нашей стране.
Вы ненавидите коммунистов.
Я не ненавижу коммунистов как людей. Я считаю, что через свободную демократию вы на самом деле развиваете более независимых и сильных людей и даете им возможность добиться большего. Это личное убеждение, и я вполне могу понять социалистическое убеждение, но это не значит, что я хочу, чтобы их убеждения распространялись методами пропаганды, которые не всегда открыты и откровенны, — скрытыми методами.
Я вполне согласен, что мы оба должны сделать все возможное, чтобы доказать, что наш путь является лучшим для будущего. Но я чувствую, что нам придется найти способ двигаться вперед к более дружественным отношениям, иначе мы закончим войной, которой никто из нас не хочет.
(Доктор ГУРЕВИЧ, прерывая: Сэр, вы только что сказали: «Мы любим мир, но мы убеждены, что коммунизм распространится по миру». Как это сделать мирно? Вы либо признаете, что противоположная идея имеет шанс или вы просто уничтожаете возможность сосуществования.Вы должны признать, что две вещи могут продолжаться, даже если они не приведут к полному совпадению взглядов в какой-либо момент.
)
ХРУЩЕВ: Многие считают, что коммунизм лучше той системы, которая существует сейчас.
(Еще раз д-р ГУРЕВИЧ: Нет ли противоречия в том, что вы говорите? Мы уже говорили о сосуществовании, и вы на одном дыхании говорите, что убеждены в том, что коммунизм распространится по всему миру. Разве вы не делаете все возможное? ускорить этот процесс?)
ХРУЩЕВ: О нет, противоречия нет.То, что я сказал о распространении коммунизма, похоже на рассказ о законе природы. Я твердо убежден, что это естественный ход истории и не имеет ничего общего с тем, чтобы мы мирно сосуществовали и прекратили угрозу уничтожения друг друга.
РУЗВЕЛЬТ: Тогда мы оба знаем, что бомбы опасны и могут уничтожить мир.
ХРУЩЕВ: Мы за полное разоружение. Нам не нужно оружие, если вы примете наше существование и перестанете вмешиваться везде, где только можно.
РУЗВЕЛЬТ: Но мы тоже за разоружение, но должна быть какая-то международная инспекция.
ХРУЩЕВ: Мы за международную инспекцию, но сначала доверие, а потом инспекция.
Мистер Даллес хочет инспекции без доверия.
РУЗВЕЛЬТ: Я думаю, что доверие и проверка должны идти рука об руку. Мы должны начать и постепенно увеличивать наши планы.
ХРУЩЕВ: Совершенно верно. Только постепенно это можно сделать.
РУЗВЕЛЬТ: Вы бы согласились на ограниченную инспекцию, если бы мы могли начать?
ХРУЩЕВ: Но я вполне согласен.Именно это мы и предложили. Мы предлагаем инспекции в портах, на автомагистралях, на дорогах, в аэропортах, и это должна быть международная инспекция. Но в ответ на наше предложение г-н Даллес делает заявление, которое звучит так, как будто он занимается пропагандой атомной бомбы, пытаясь сделать ее приемлемой. Он говорит о чистой бомбе так, как будто существует такая вещь, как чистая бомба. Война — грязное дело.
Но вы отказались от нашего предложения. Вы настаиваете на этом летном бизнесе и смотрите на наши заводы. Вы знаете, что эти ракеты только усугубили ситуацию.Теперь мы можем уничтожать страны за несколько минут.
Сколько бомб нужно, чтобы уничтожить Западную Германию? Сколько для Франции? Сколько для Англии? Немного. Теперь у нас есть водородные бомбы и ракеты. Нам даже не нужно посылать никаких бомбардировщиков.
РУЗВЕЛЬТ: И скоро у малых стран будут атомные бомбы.
ХРУЩЕВ: Почему бы и нет? Исследования продолжаются. Они узнают об этом. Давайте объединимся, чтобы не было войны. Мы готовы подписать такое соглашение сейчас.
РУЗВЕЛЬТ: Ваш народ определенно хочет мира, и я могу заверить вас, что наш народ тоже хочет мира.
ХРУЩЕВ: Думаете, мы, правительство, хотим войны?
РУЗВЕЛЬТ: Не люди, а правительства ведут войну. А потом убеждают людей, что это благое дело, дело их собственной защиты. Эти аргументы могут быть выдвинуты как вашим правительством, так и нашим.
ХРУЩЕВ: Верно. Можно ли сказать, что у нас была дружеская беседа?
РУЗВЕЛЬТ: Можно сказать, что у нас была дружеская беседа, но мы расходимся.
ХРУЩЕВ: Вот мы и не стреляли друг в друга.
На самом деле это был конец того, что я могу дать вам в реальных цитатах. Однако была очень интересная дискуссия на тему, представляющую большой общий интерес, поскольку она затрагивает ситуацию на Ближнем Востоке. Так что следующую колонку я посвящу этой части нашего разговора, хотя и не буду цитировать точные слова г-на Хрущева.
(ПРИМЕЧАНИЕ ДЛЯ РЕДАКТОРА: поскольку на г-жу Рузвельт постоянно оказывают давление, чтобы она раскрыла информацию, полученную в ходе ее интервью с Никитой С. Хрущевым, и она не хочет этого делать до тех пор, пока она не появится в ее колонке, оставшаяся часть ее интервью освещена в этот столбец.Поэтому он работает значительно дольше, чем обычно. — УФС.)
8 октября 1957 г.
ДЕТРОЙТ. Один из вопросов, которые я задал г-ну Хрущеву после окончания записи интервью, касался его общего отношения к ситуации на Ближнем Востоке и обращения с евреями в Советском Союзе, а также некоторых его заявления о Государстве Израиль.
Г-н Хрущев, казалось, очень хотел, чтобы мы поняли, что коммунист не может быть антисемитом.Коммунизм был противником любой дискриминации по признаку расы или религии, и если член коммунистической партии был известен как антисемит, никто не пожимал ему руки. Поскольку Карл Маркс был евреем, продолжал г-н Хрущев, как мы могли поверить, что какой-нибудь коммунист будет антисемитом? А его собственный сын, погибший на войне, как он сказал нам, был женат на еврейке. Евреям в Советском Союзе, продолжал он, были предоставлены все возможности для образования и получения должностей. Затем он сказал, что Советы проголосовали за создание государства Израиль, но в настоящее время он считает, что Израиль должен изменить свою политику и стать менее агрессивным.
Я предположил, что Советский Союз передал оружие Сирии, что было одной из причин чувства незащищенности в Израиле и, следовательно, их проявления агрессии. Он вспылил и сказал, что там 80 миллионов арабов и около миллиона израильтян, поэтому, если Израиль продолжит свою нынешнюю политику, он будет уничтожен.
Кто напал на Египет? он спросил. Разве это не Великобритания, Франция и Израиль?
Я сразу же ответил, что ему придется отделить позицию Израиля от позиции Великобритании и Франции.Египтяне в течение года говорили Израилю, что, когда они будут готовы и полностью вооружены Советами, египтяне вытеснят израильтян в море. Таким образом, действия израильтян носили характер самообороны, поскольку они не могли ждать, пока наращивание сил против них будет завершено. Доказательства наращивания были обнаружены в Синайской пустыне, когда израильтяне захватили военных материалов на сумму более 50 миллионов долларов, предоставленных Советами или их сателлитами.
Господин Хрущев от этого увернулся.Когда я добавил, что, по моему мнению, он ошибался, говоря, что Израиль агрессивен, потому что им нужен мир больше, чем любой другой стране, чтобы укрепить свою страну, он повернулся ко мне и сказал: «США поддерживают Израиль оружием». Тут доктор Гуревич вмешался и сказал: «Но помните ли вы, что США голосовали вместе с вами по Суэцкому вопросу?»
Г-н Хрущев ответил, что он очень хорошо помнит, но очевидно, что США хотят оставаться в хороших отношениях с обеими сторонами.
Они не хотели терять арабов из-за нефти, и арабы это прекрасно понимали.Затем он повернулся ко мне, чтобы сказать, насколько глупым он считает утверждение о существовании антисемитизма в Советском Союзе. Разве я не знал, что в Советской Армии было много высокопоставленных евреев, в том числе еврей-генерал, и что в Кремлевской стене был похоронен еврей?
Я подумал, что в этом месте я приму его тактику нападения, и сказал: «В любом случае, сэр, любому еврею очень трудно покинуть Советский Союз, если он захочет поехать и поселиться в Израиле или даже посетить его.
«Я знаю», — без колебаний ответил г-н Хрущев; «Но придет время, когда каждый, кто захочет, сможет это сделать».
Затем я сказал, что, как мне кажется, Советский Союз мог бы помочь, если бы они были готовы работать с США для достижения взаимопонимания между Израилем и арабскими странами. Израиль был готов сесть с арабскими представителями и попытаться решить их трудности, но арабы всегда отказывались.
Г-н Хрущев ответил, что он очень хорошо знает, что арабы допустили ошибки; но надо помнить, что СССР был для класса, а не для государства.Израиль состоял из всевозможных классов; Советы были за социалистов в Израиле, но не за государство! (Я полагаю, когда г-н Хрущев говорил здесь о «социалистах», он имел в виду коммунистов.)
Я не сомневаюсь, что Советы пытаются полностью интегрировать евреев. В других местах Советы гордятся тем, что они позволили своим различным республикам сохранить свою собственную культуру, свое искусство и языки. Но евреи в Советском Союзе не в отдельной республике; они разбросаны по разным городам.Я думаю, что Советы чувствовали, что они могут хорошо использовать мозги этих людей, но они хотели, чтобы они были коммунистами, а не людьми с отдельной культурой и, возможно, с другими политическими убеждениями. Вот почему, например, в Советском Союзе больше нет еврейского театра. Они разрешают посещение синагоги, так же как разрешают посещение православной церкви и церквей, принадлежащих баптистам.
Каждая из этих религий может обучать определенное количество раввинов и служителей. Но еврейской школы для детей нет, так как хотят, чтобы евреи учились в обычных советских школах.
Совершенно верно, что евреи занимают высокие места в министерствах, среди врачей, учителей, ученых и т. д. Но еврейская культура, конечно, не поощряется, и я уверен, что есть ряд евреев, которые были бы рады, если бы они могли даже получить разрешение посетить Израиль на короткое время. Как скоро обещание г-на Хрущева о том, что «придет время», будет выполнено, нам придется подождать, чтобы узнать.
| Россия Содержание Конец сталинской эпохи принес немедленную либерализацию в ряде
стороны советской жизни.Лидер партии Никита Сергеевич Хрущев осудил
Тираническое правление Сталина в 1956 году обозначило резкий разрыв с
мимо. Поскольку у Хрущева не было всеохватывающей власти Сталина,
время его пребывания в должности было отмечено непрерывным маневрированием против
политические враги гораздо более реальны, чем враги Сталина. Коллективное лидерство и восстание Хрущева Сталин умер, не назвав наследника, и никто из его соратников не
возможность немедленно претендовать на верховное руководство.Сначала
коллеги покойного диктатора пытались править совместно с Маленковым
занимал высший пост премьер-министра. Первый вызов этому
договоренность произошла в 1953 году, когда могущественный Берия замышлял государственный переворот. После устранения Берии борьба за престолонаследие обострилась.
тонкий. Маленков нашел себе грозного соперника в лице Хрущева, которого
Президиум избрал первого секретаря (Сталинское звание генсека
был упразднен после его смерти) в сентябре 1953 г. Крестьянского происхождения,
Хрущев возглавлял украинскую партийную организацию.
и после Второй мировой войны, и он был членом советского политического
элита в позднесталинский период.Соперничество между Маленковым и
Хрущев публично проявил себя в противопоставлении Маленкова
поддержка увеличения производства товаров народного потребления и хрущевской
поддерживать дальнейшее развитие тяжелой промышленности. На ХХ съезде партии, состоявшемся в феврале 1956 г., Хрущев
еще больше укрепил свою позицию внутри партии, осудив сталинскую
преступления в драматической «секретной речи». Хрущев показал, что
Сталин самовольно ликвидировал тысячи членов партии и
военачальников, тем самым способствуя первоначальным поражениям СССР в
Второй мировой войны и установил то, что Хрущев охарактеризовал как
пагубный культ личности.Этой речью Хрущев не только
дистанцировался от Сталина и от приближенных Сталина,
Молотова, Маленкова и Лазаря Кагановича, но и отрекся от
Использование диктатором террора как инструмента политики. После ХХ съезда Хрущев продолжил расширение
его влияние, хотя он все еще сталкивался с противодействием. Его соперники в
Президиум, вдохновленный поворотом советской внешней политики на Востоке
Европе в 1956 году, что потенциально угрожало экономическим реформам, и
Кампания по десталинизации объединилась, чтобы проголосовать за его отставку в июне
1957 г. Хрущев предпринял дальнейшие усилия по укреплению своей власти в последующем месяцы.В октябре он снял маршала Жукова (который помогал Хрущеву подавить «антипартийную группу») из кабинета обороны министра, предположительно потому, что боялся влияния Жукова в вооруженных силах. сил. Хрущев стал премьер-министром в марте 1958 года, когда Булганин ушел в отставку, тем самым формально подтвердив свое преобладающее положение в государстве так и в партии. Несмотря на свой ранг, Хрущев никогда не пользовался диктаторскими полномочиями. Внешняя политика при Хрущеве Практически сразу после смерти Сталина началось коллективное руководство
изменение поведения советской внешней политики, чтобы улучшить отношения
с Западом и новые подходы к неприсоединившимся странам. Маленков
изменил тон, выступив против ядерной войны как
угроза цивилизации. Вместе с достижениями новой дипломатии пришли и неудачи. От
признавая независимый подход Югославии к коммунизму в 1955 году, а также
своей кампанией по десталинизации Хрущев создал возможность для
беспорядки в Восточной Европе, где проводилась политика сталинской эпохи.
особенно обременительно.В Польше беспорядки привели к изменению
руководство коммунистической партии, которое Советский Союз неохотно
признан в октябре 1956 года. Народное восстание против советского контроля
затем вспыхнуло в Венгрии, где местные коммунистические лидеры во главе с
Имре Надь призвал к многопартийной политической системе и выходу из
Варшавский договор (см. Глоссарий), оборонительный союз, основанный
Советский Союз и его восточноевропейские сателлиты в 1955 году. Советская армия
подавил восстание в начале ноября 1956 г., что привело к многочисленным жертвам.Хотя венгерская революция нанесла ущерб репутации СССР в мировом мнении,
он продемонстрировал, что Советский Союз применит силу в случае необходимости
сохранить контроль над своими государствами-сателлитами в Восточной Европе. За пределами советской сферы контроля Китай становился все более беспокойным
при председателе Коммунистической партии Китая Мао Цзэдуне. Недовольство Китая
с новым советским руководством связано с низким уровнем советской помощи,
слабая советская поддержка Китая в его спорах с Тайванем и Индией,
и новая советская доктрина мирного сосуществования с Западом, которая
Мао считал предательством марксизма-ленинизма.Против Хрущева
желает, Китай приступил к программе создания ядерного оружия, заявив в 1960 г., что
коммунизм может победить «империализм» в ядерной войне. То
спор между воинствующим Китаем и более умеренным Советским Союзом
переросла в раскол в мировом коммунистическом движении после 1960 г.
Албания вышла из советского лагеря и стала союзницей Китая, Румынии
дистанцировался от СССР в международных делах и
Коммунистические партии по всему миру разделились по поводу того, должны ли они быть
ориентированы на Москву или Пекин. Отношения СССР с Западом, особенно с США,
качели между моментами относительного расслабления и периодами напряжения
и кризис. Со своей стороны, Хрущев хотел мирного сосуществования с
Западу не только для того, чтобы избежать ядерной войны, но и для того, чтобы
Союза для развития своей экономики. Встречи Хрущева с Президентом
Эйзенхауэр в 1955 году и президент Джон Ф.Кеннеди в 1961 году и его турне по
США в 1959 году продемонстрировали стремление советского лидера к
принципиально гладкие отношения между Западом и Советским Союзом и
его союзники. Однако Хрущеву также нужно было продемонстрировать советскому
консерваторов и воинствующих китайцев, что Советский Союз был твердой
защитник социалистического лагеря. Таким образом, в 1958 году Хрущев бросил вызов
статус Берлина; когда Запад не уступил его требованиям о том, что
западные сектора были присоединены к Восточной Германии, он одобрил
возведение Берлинской стены между восточным и западным секторами
город в 1961 году. В отличие от этого, Советский Союз чувствовал угрозу со стороны перевооруженного Федерального
Республика Германия (Западная Германия), по системе альянса США
который, казалось, окружил Советский Союз, и, по мнению Запада,
превосходящая стратегическая и экономическая мощь. Чтобы компенсировать Соединенные Штаты
военное преимущество и тем самым улучшить позицию СССР на переговорах,
Хрущев в 1962 году пытался установить ядерные ракеты на Кубе, но он
согласился отозвать их после того, как Кеннеди отдал приказ о блокаде вокруг
островное государство. Хрущевские реформы и падение За годы своего руководства Хрущев пытался осуществить
реформы в ряде областей. Проблемы советского сельского хозяйства, крупной
озабоченность Хрущева, ранее привлекала внимание
коллективное руководство, которое внесло важные новшества в эту
области советской экономики. Государство поощряло крестьян выращивать больше
на своих приусадебных участках, повышенные платежи за урожай, выращенный на коллективных
фермы, и вложили больше средств в сельское хозяйство. Попытки Хрущева провести реформы в промышленности и управлении
организация создала еще большие проблемы. В политически мотивированном
шаг к ослаблению центральной государственной бюрократии, в 1957 году Хрущев сделал
убрали промышленные министерства в Москве и заменили их
областные совнархозы. К 1964 году престиж Хрущева был подорван в ряде областей.
Промышленный рост замедлился, в то время как сельское хозяйство не показало нового прогресса.
За границей раскол с Китаем, берлинский кризис и кубинское фиаско
нанесли ущерб международному авторитету Советского Союза, а усилия Хрущева
улучшение отношений с Западом вызывало неприязнь у многих в вооруженных силах. Пользовательский поиск Источник: Библиотека Конгресса США |
Хрущевка в Айове | The National Endowment for the Humanities
Это было 23 сентября 1959 года, в день, когда премьер-министр СССР Никита Сергеевич Хрущев приехал в город, чтобы навестить своего друга, продавца семян кукурузы Розуэлла Гарста, и ознакомиться с передовыми американскими сельскохозяйственными технологиями.
Мероприятие привлекло сотни репортеров и тысячи любопытных, жаждущих мельком увидеть ведущего коммуниста мира.
«Отец моего друга сказал, что все, кого я видел в Кун-Рапидсе в галстуке и кого я не знала, были шпионами», — говорит Лиз Гарст, внучка Розуэлла, которой в то время было восемь лет. «Я провел много времени, проверяя крутых шпионов на Мейн-стрит».
Пятьдесят лет спустя Лиз и ее сестра Рэйчел помогают вспомнить этот день трехдневным праздником под названием «Хрущев в Айове». Уильям Таубман, автор получившей Пулитцеровскую премию биографии Хрущев: Человек и его эпоха , открывает мероприятие выступлением 27 августа в Университете Дрейка в Де-Мойне.Далее следует конференция в отеле Fort Des Moines на следующий день и ряд мероприятий в Кун-Рапидс в воскресенье, 29 августа. Это шанс отметить то, что некоторые историки считают первой оттепелью в холодной войне. Если это так, то следует отдать должное Розуэллу Гарсту, человеку, который, по словам Лиз, «сделал мир очень интересным».
«Мой дед думал, что может делать все, что захочет», — сказала Лиз. «Он был из тех парней, которые писали письма Папе или садились в поезд, чтобы наорать на министра сельского хозяйства.Он думал, что то, что он сказал, может повлиять на вещи». Его большой шанс появился благодаря необычному сочетанию факторов.
У Хрущева была проблема: как помочь Советскому Союзу прокормить себя. Он пришел к выводу, что его стране нужен кукурузный пояс, и приступил к изучению американского сельского хозяйства.
Была организована серия обменов между США и Советским Союзом. В конце концов Гарст показал главе одной из советских делегаций свою ферму и семеноводческую компанию в Кун-Рапидс, а взамен получил приглашение посетить Советский Союз.Во время поездки он и Хрущев познакомились и нашли общий язык.
«Хрущев не только многое узнал от Гарста о выращивании кукурузы, но и как личность он ему бесконечно нравился», — говорит Таубман. «Оба мужчины любили поболтать. Хрущеву нравилась придирчивость Гарста, особенно когда она оправдывала его собственную, например, когда Гарст ругал советских фермеров за то, что они сеют кукурузу без удобрения почвы».
Некоторые американцы критиковали Гарста за торговлю с врагом, а некоторые утверждали, что он был коммунистом. Лиз говорит, что ее дедушка был просто хорошим капиталистом, который делал то, что было правильно для бизнеса.
Хрущевы приземлились в Соединенных Штатах 15 сентября 1959 года. Их двенадцатидневная поездка включала остановки в Нью-Йорке, Вашингтоне, округ Колумбия, Лос-Анджелесе и Кэмп-Дэвиде. Гарст был единственным человеком, с которым встречался премьер, помимо президента Эйзенхауэра.
Освещение поездки в прессе вызвало волнение у советских людей, в том числе у президента Совета гуманитарных наук штата Айова Валентины Фоминых, которая, будучи ребенком в Казахстане, запомнила фотографии кукурузных полей Айовы как «впечатляющие».Но Хрущев так и не смог повторить те кукурузные поля у себя дома.
Возможно, величайшим наследием является способность человека изменить мир к лучшему. «Розуэлл представлял собой первую оттепель в холодной войне, — говорит Лиз.
«Он сделал это силой своей воли. Мы надеемся, что сосредоточение внимания на этой годовщине поможет молодым людям услышать это послание».
Таубман, Уильям С. | Преподаватели и сотрудники
Ученые степени
Доктор философии, Колумбийский университет (1969 г.)
Магистр искусств, Колумбийский университет (1965 г.)
Сертификат Российского института Колумбийского университета (1965 г.)
A.Б. Гарвардский колледж (1962)
утра. (почетный) Amherst College (1978)
Преподавательские интересы
Одним из достоинств преподавания в Амхерсте является то, что почти все вовлечены в предложение междисциплинарных курсов, которые преподаются совместно с коллегами из других отделов и выходят за рамки любой специальности профессора. В моем случае такие курсы включали «Тоталитаризм», «Война», «Бедность», «Взгляд на профессию», «Национальная идентичность» и «Личность и политическое лидерство».«Помимо того, что они сами по себе прекрасно стимулируют, эти начинания обладают еще и дополнительным преимуществом: они обогащают собственные специализированные курсы, в моем случае такие курсы, как «Российская политика» и «Переосмысление холодной войны».
Совсем недавно я провел семинар на тему « Горбачев, конец холодной войны и распад Советского Союза», в котором студенты присоединились ко мне, пытаясь исследовать и понять направление и влияние жизни и карьеры Горбачева.
Избранные публикации
Хрущев: человек и Его Эра (Нью-Йорк: У.У. Нортон, март 2003 г.).
Переведено на русский, испанский, латышский, китайский, польский, чешский, литовский, эстонский, шведский. .
Редактор и переводчик, Хрущев о Хрущеве , Сергей Н. Хрущев (Бостон: Little, Brown, 1990).
Москва Весна , написано с Джейн Таубман (Нью-Йорк: Summit Books, 1989).
Американская политика Сталина: от Антанты к разрядке и к холодной войне (Нью-Йорк: WW Norton, 1982).
Управление советскими городами: бюрократическая политика и городское развитие в СССР (Нью-Йорк: Praeger, 1973)
Редактор, Глобализм и его критики: американские внешнеполитические дебаты , 1973)
Взгляд с Ленинских гор: ферментация советской молодежи (Нью-Йорк: Coward-McCann, 1967)
Ссылки
Publishers Weekly (17.
02.03)
The Economist (5/10/ 03)
«Как речь выиграла холодную войну» (обзор, NYT, 25 февраля 2006 г.)
Обзор Хрущева Ричарда Пайпса (NYT 26 марта 2003 г.) 16.03.03)
Роберт Г.Отзыв Кайзера о Хрущеве (WaPo, 03.03.03)
Отзыв Строба Талбота о Хрущеве (LAT, 09.03.03)
Отзыв Роберта Легволда о Хрущеве (Foreign Affairs, 3 мая/июня)
Кэтлин Э. Обзор Смита (87) о Хрущеве (Амхерст, весна 03)
См. также: Награды и почести, Научные интересы, Научная и профессиональная деятельность
Рассекречено: Краткая история НАТО
Тем временем НАТО продолжала принимать новых членов и налаживать новые партнерские отношения.Совет Россия-НАТО был создан в 2002 году, чтобы отдельные государства-члены НАТО и Россия могли работать как равные партнеры по вопросам безопасности, представляющим взаимный интерес. В 2004 году Североатлантический союз выступил со Стамбульской инициативой сотрудничества, чтобы предложить практическое двустороннее сотрудничество в области безопасности странам более широкого ближневосточного региона.
Наконец, последующие раунды расширения привлекли к себе больше союзников – Румынию, Болгарию, Словакию, Словению, Латвию, Эстонию и Литву в 2004 г., а также Хорватию и Албанию в 2009 г.
Новый подход для нового века
В Афганистане, как и в Боснии и Косово, союзники обнаружили, что военной мощи уже недостаточно для обеспечения мира и стабильности. Поддержание мира стало по крайней мере таким же трудным, как и миротворчество. В годы холодной войны безопасность союзников подразумевала защиту союзников в Северной Атлантике; теперь определение «безопасности» радикально расширилось и теперь включает свободу человека от насильственного экстремизма, порожденного нестабильностью и несостоятельностью национального государства.Например, в 2011 году большая часть внимания всего мира была прикована к кризису в Ливии, где НАТО сыграла решающую роль, помогая защитить гражданское население, подвергшееся нападению со стороны их собственного правительства, в соответствии с мандатом Организации Объединенных Наций.
Уровень насилия, примененного ливийскими силами безопасности против протестующих за демократию, был таков, что международное сообщество согласилось предпринять коллективные действия. Равнодушие просто не вариант.
Успешная миротворческая деятельность должна заключаться не только в обеспечении основы безопасности, но и в содействии созданию самой современности.Эта задача выходит за рамки НАТО, и союзники это знают. Североатлантический союз не является и не может быть гражданским агентством по восстановлению, но НАТО может внести значительный вклад при условии, что он является частью согласованного международного ответа. В новой Стратегической концепции, согласованной в 2010 году, Североатлантический союз взял на себя обязательство действовать «на всех стадиях кризиса — до, во время и после» — всеобъемлющий принцип, предполагающий повышение роли безопасности на основе сотрудничества. Эта идея лежит в основе «комплексного подхода».Геополитическая нестабильность требует комплексных мер, сочетающих военную мощь, дипломатию и постконфликтную стабилизацию.
Только максимально широкая коалиция международных акторов может обеспечить элементы всех трех. Соответственно, Североатлантический союз развивает партнерские отношения в области безопасности не только со странами Средиземноморья, региона Персидского залива и даже Тихоокеанского региона, но также налаживает контакты с другими международными организациями и неправительственными организациями, обладающими полномочиями в таких областях, как институт — строительство, управление, развитие и судебная реформа.Помогая в установлении прочного мира в Кабуле или Приштине, противодействуя пиратству у берегов Африканского Рога или оказывая военную помощь Судану, НАТО расширяет сотрудничество с другими международными организациями, которые могут задействовать свои превосходные возможности в области реконструкции и построения гражданского общества.
Однако 21-й -й -й век будет посвящен не только миростроительству. Незаконная аннексия Крыма Россией в 2014 году и ее агрессивные действия против Украины стали отрезвляющим напоминанием о важности основной задачи НАТО: коллективной обороны.
Это, в сочетании с сирийским конфликтом, подъемом ИГИЛ и терроризма (часто доморощенного терроризма), стало жестокой реальностью на многих континентах. Между тем напряженность растет, поскольку мигранты ищут убежища от конфликтов в странах, которые борются с тяжестью этнических и религиозных раздоров, демографического давления и экономической неэффективности. Кибератаки становятся все более частыми и все более разрушительными. А через социальные сети и другие средства противники либеральных открытых обществ распространяют дезинформацию и пропаганду, стремящиеся подорвать ценности, которые НАТО всегда стремилась защищать и продвигать.В целом, сложность нынешней обстановки в области безопасности такова, что гибкость НАТО снова подвергается испытанию.
С момента своего основания в 1949 году гибкость трансатлантического Североатлантического союза, заложенная в его первоначальном договоре, позволяла ему удовлетворять различные потребности в разное время. В 1950-х годах Североатлантический союз был чисто оборонительной организацией.
В 1960-е годы НАТО стала политическим инструментом разрядки . В 1990-е годы Североатлантический союз был инструментом стабилизации Восточной Европы и Центральной Азии за счет включения новых партнеров и союзников.В первой половине XXI -го -го века НАТО сталкивается с постоянно растущим числом новых угроз. Являясь краеугольным камнем трансатлантического мира и свободы, НАТО должна быть готова ответить на этот вызов.
Россия: завтра три масти
(3 из 10)
Сегодня аргументы в пользу потребителя стали еще сильнее. В то время как военные нужды помогали поддерживать развитие тяжелой промышленности в сталинскую эпоху, передовые оборонные и космические технологии в настоящее время выкачивают плохо щадящий капитал и технические умы, практически не возвращая экономике в целом.
Обсуждая нехватку своих ферм с обремененным излишками министром сельского хозяйства США Орвиллом Л.Freeman в августе прошлого года Хрущев провел рукой по горлу и заметил: «У меня здесь есть ракеты». Чего Запад не всегда подозревает, так это того, что, когда советская линия резко меняет направление от сердечного сосуществования к враждебности или обратно, это изменение может отражать не столько коммунистические дипломатические уловки, сколько новый поворот в фракционной войне между кремлевскими бюрократами. .
Дело десятилетий. С конца 1958 года пожирателям металла удалось увеличить расходы СССР на оборону на одну треть, почти до 20% от российского G.N.P. против 9% в США. Как всегда, производство потребительских товаров первым ощутило на себе удар. Хотя за последний год напряженность между Востоком и Западом заметно снизилась, советское правительство произвело лишь символические сокращения военного бюджета. Бремя вооружений является самым тяжелым из многих требований к советским ресурсам, которые серьезно перегружали экономику в то время, когда доходы правительства сокращались.
Ежегодные темпы прироста инвестиций в экономику упали на 50% с 1959 года, в то время как темпы экономического роста в России упали с более чем 6% в 50-х годах до уровня, недавно оцененного Центральным разведывательным управлением в менее чем 2.5% в 1962 и 1963 годах.
В то время как некоторые экономисты утверждают, что красный спад не так уж серьезен, другие независимые исследования коммунистической статистики подтверждают оценки ЦРУ. Никто всерьез не верит, что России грозит экономический коллапс. Но если советское общество должно обеспечить своим 226 миллионам человек уровень жизни, сравнимый с западным, то до этого дня еще далеко.
Будьте терпеливы. В то время как комфорт живых существ в настоящее время не имеет большого политического приоритета, судьба россиян уже значительно улучшилась за десятилетие, прошедшее после смерти Сталина.В 1953 году реальная заработная плата россиян была меньше, чем до первой пятилетки 1928 года; с тех пор население увеличилось почти на 50%, но объем сельскохозяйственного производства на душу населения остался прежним.

Партийный контроль
культурная деятельность стала гораздо менее ограничительной с началом
Первая «оттепель» в середине 1950-х гг. Хрущев пытался провести реформы в
как внутренней, так и внешней политики, с неоднозначными результатами.За время своего пребывания в должности
(1953-64), мировая политика стала намного сложнее, поскольку ненадежность
продолжалась холодная война; Хрущев в конце концов был уничтожен
сочетание неудачных политических инноваций в сельском хозяйстве, партийной политике,
и промышленность.
Однако Берия, наживший много врагов за время своего кровавого
начальник охраны, был арестован и расстрелян по постановлению Президиума. Его
смерть уменьшила чрезмерную власть тайной полиции, хотя
жесткий контроль партии над органами госбезопасности закончился только с
распад самого Советского Союза (см. Внутренняя безопасность до
1991, гл.10).
После
плохие показатели легкой промышленности и сельского хозяйства, Маленков подал в отставку.
премьер-министром в феврале 1955 года. Поскольку новый премьер-министр Николай
Булганин, имел мало влияния и реальной власти, уход Маленкова
сделал Хрущева самой важной фигурой в коллективе
лидерство.
Как прямой результат
Кампания «десталинизации», начатая Хрущевым
речь, освобождение политзаключенных, начавшееся в 1953 г., было
активизировались, и некоторые сталинские жертвы были посмертно
реабилитирован.Хрущев усилил кампанию против Сталина.
Двадцать второй съезд партии в 1961 году получил одобрение на отмену
Тело Сталина из Мавзолея Ленина, где оно изначально находилось
похоронен. Десталинизация воодушевила многих в художественном и интеллектуальном
кругах выступить против злоупотреблений прежнего режима. Несмотря на то что
Толерантность Хрущева к критическим творческим работам была разной.
период пребывания в должности, новый культурный период, известный как
«оттепель» — явный разрыв с репрессиями
искусства при Сталине.
Хрущев, однако, потребовал поставить дело на
ЦК КПСС, где пользовался сильной поддержкой.То
ЦК отменил решение Президиума и исключил
оппоненты Хрущева (Маленков, Молотов и Каганович), которых
Хрущев назвал «антипартийной группой». В отъезде от
Сталинская процедура, Хрущев не приказывал арестовывать или
казни своих побежденных соперников, но вместо этого поставил их в относительно
мелкие конторы.
власть Сталина, и он никогда полностью не контролировал партию, даже
на пике своего могущества.Его нападки на членов «антипартийной
группа» на XXI съезде партии в 1959 г.
Двадцать второй съезд партии в 1961 году предполагает, что его противники сохранили
поддержку внутри партии. Относительная политическая незащищенность Хрущева
вероятно, объяснялись некоторые из его грандиозных заявлений, например
его обещание 1961 года, что Советский Союз придет к коммунизму к 1980 году.
Его желание подорвать оппозицию и смягчить критиков объясняло
характер многих его внутренних реформ и колебания в его
внешней политики в отношении Запада.
Хрущев изначально противоречил этой позиции,
говоря, что только капитализм будет уничтожен в ядерной войне, но он
принял точку зрения Маленкова, закрепив за собой внутриполитическую позицию.В 1955 году, чтобы ослабить напряженность между Востоком и Западом, Хрущев признал
постоянный нейтралитет Австрии. Встреча с президентом Дуайтом Д. Эйзенхауэром
позднее в том же году в Женеве Хрущев подтвердил приверженность Советского Союза
«мирное сосуществование» с капитализмом. Учитывая
развивающихся стран, Хрущев пытался завоевать расположение их
национальные лидеры вместо того, чтобы следовать установившейся советской политике
избегая правительств, поддерживая местные коммунистические партии.Советское влияние на международные отношения Индии и Египта,
как и в других странах третьего мира, началось в середине
1950-е годы. Вступление Кубы в социалистический лагерь в 1961 году было переворотом для
Советский союз.

Монолитный блок мира
коммунизм потерпел крах.
Для поддержания национального престижа Хрущев отменил
Встреча на высшем уровне с Эйзенхауэром в 1960 году после советских войск ПВО
сбил американский самолет-разведчик над советской территорией.
Наконец, недоверие к военным намерениям омрачило отношения между Востоком и Западом.
в течение этого времени. Запад опасался последствий советских нововведений
в космической технике и видел в наращивании советской военной
наметившийся «ракетный разрыв» в пользу СССР.
После приближения к войне во время кубинской ракеты
кризис, Советский Союз и США предприняли шаги по сокращению
ядерная угроза. В 1963 году две страны установили «горячее
линия» между Вашингтоном и Москвой для обеспечения мгновенного
связь, которая уменьшила бы вероятность аварийного ядерного
война. В том же году США, Великобритания и Советский Союз
подписали Договор об ограниченном запрещении ядерных испытаний, который запрещал ядерное оружие
испытания в атмосфере.
В его драматической Деве
Земельная кампания В середине 1950-х годов Хрущев открыл обширные участки земли
земледелию в северной части Республики Казахстан и соседних
районах Российской республики. Эти новые сельскохозяйственные угодья оказались
восприимчивы к засухе, но в отдельные годы давали отличные
урожай. Однако более поздние нововведения Хрущева доказали свою эффективность.
контрпродуктивно. Его планы по выращиванию кукурузы и увеличению мяса и
молочное производство с треском провалилось, и его реорганизация коллектива
фермы в более крупные единицы произвели замешательство в деревне.
Хотя он предполагал, что эти совнархозы
более чутко реагировать на местные потребности, децентрализация промышленности
привело к нарушению и неэффективности.В связи с этой децентрализацией
было решение Хрущева в 1962 году переделать партийные организации вместе с
экономические, а не административные линии. В результате бифуркация
партийного аппарата в промышленный и сельскохозяйственный секторы.
областного (областного) уровня и ниже способствовали беспорядку и
оттолкнула многих партийных чиновников всех уровней. Симптоматика
экономическими трудностями страны стал отказ в 1963 г.
Особому семилетнему хозяйственному плану Хрущева (1959-65) не хватило двух лет
его завершения.
Наконец, партийная реорганизация 1962 г. вызвала беспорядки по всей стране.
Советская политическая цепочка инстанций.В октябре 1964 года, когда Хрущев был
отдыхал в Крыму, Президиум отстранил его от должности и отказал
разрешить ему обратиться со своим делом в ЦК. Хрущев
ушел в отставку как частное лицо после того, как его преемники осудили его за его
«непродуманные схемы, непродуманные выводы и поспешные
решений». Тем не менее, наряду с его неудачной политикой, Хрущев должен
также запомнится его публичным отрицанием сталинизма и
гибкость, которую он привнес в советское руководство после длительного периода
монолитный ужас.