Перепланировка хрущевки 2 комнаты фото 43 квадрата: планировка и перепланировка, ремонт квартиры
планировка и перепланировка, ремонт квартиры
Вы владелец двухкомнатной хрущевки на 43 кв? Не стоит отчаиваться, даже ее можно сделать комфортной и удобной, если изменить планировку. Грамотный ремонт даже из захудалого жилья может создать комфортную квартиру. А о том, как производится планировка двухкомнатной хрущевки – читайте в этой статье.
Правила проведения перепланировки
Начать стоит с того, что перепланировка 2 х комнатной хрущевки – вопрос юридический, и требует заверения каждого шага в соответствующих инстанциях. Сразу учтите, что некоторые дизайнерские идеи будет невозможно воплотить из-за законодательных ограничений.
Планировка хрущевки в которой 2 комнаты, регламентируется 26 пунктом ЖК России. Он говорит, что для изменения конструкции квартиры необходимо подать следующие документы:
- Ваше заявление с просьбой разрешить перепланировку.
- Документы, устанавливающие ваше право на жилье. Необходим оригинал и копия, заверенная у нотариуса.

- Все документы, входящие в проект новой планировки квартир (схема, план и т.д).
- Технический паспорт из бюро технической инвентаризации.
После того, как вы получите соглашение, можно начинать ремонт двухкомнатной хрущевки. Когда он будет закончен, необходимо уведомить комиссию, подписать приемку и оформить новый техпаспорт.
Обратите внимание, что делать перепланировку без заявления не стоит. Вы получите 100% штраф, причем немалый. К тому же продать такую квартиру будет невозможно.
Что нельзя делать при перепланировке
Обычная 2-комнатная квартира в хрущевке изысканным дизайном не отличается. Маленькая кухня, неизолированные комнаты, крохотный санузел и это только основные недостатки. В старых квартирах соответствующая проводка без заземления.
Сначала нужно рассмотреть, что нельзя делать при перепланировке:
- Перемещать санитарный узел куда-либо.
- Изменять тепловой контур.
Есть тенденция на снос балконной перегородки, продлевая основную комнату. Помните, ЭТО ЗАПРЕЩЕНО! Делать это запрещается, как и переносить радиатор отопления на балкон. - Перемещать кухню в смежные жилые помещения.
- Увеличивать санитарный узел за счет жилых помещений. Но, разрешается использовать площадь кухни и коридора, что проблематично в условиях хрущевки.
- Убирать несущие стены. Только перегородки!
Распространены идеи соединения кухни и гостиной. Делать этого нельзя, если она газифицирована. Если газового снабжения нет, то это вполне допускается. В первом случае необходима хотя бы небольшая перегородка.
Прорабатываем дизайн каждой комнаты
Теперь можно разрабатывать дизайн двухкомнатной хрущевки. Ниже будут приведены наиболее интересные идеи, которыми вы можете воспользоваться при ремонте.
Дизайн гостиной в хрущевке
Гостиная – это главная комната квартиры, а в хрущевке она имеет «преступно» маленькие размеры.
Что касается внутреннего оснащения, то мебель лучше сделать модульной. Например, возьмите диван-книжку. Ее можно будет сложить и не занимать места в комнате.
Если вы хотите не занимать всю комнату бессмысленной мебелью, то можно поставить журнальный столик и небольшую подставку под телевизор.
Помещение столовой и кухни
С кухней все сложнее. Зачастую она не превышает 6 квадратных метров и в таком случае практически невозможно комфортно разместить мебель и технику.
Если вы не собираетесь совмещать комнаты, воспользуйтесь следующими рекомендациями:
- Купите встроенную технику — она занимает меньше места.
- Поставьте двухкомфорочную плиту. Да, это сильно ограничит вас в кулинарии, но зато рабочего места будет больше.
- Перенесите все коммуникации и столешницу к окну.
Спальня
Итак, пора в дизайн хрущевки на 2 комнаты включить и спальню.
В стандартных маленьких квартирах – это помещение, схожее с вагончиком: вытянутое, узкое и очень вместительное.
В целом, здесь достаточно лишь одной кровати и шкафа. Чтобы стены не давили, оформите их светлыми обоями или краской. Визуальный дискомфорт уйдет, что улучшит сон и отдых.
Если хотите, чтобы интерьер был «легче», лучше воспользоваться мебелью на ножках, а не на цоколе.
Ванная и туалет
Перепланировка двухкомнатной хрущевки в санитарном узле – необходима. Если он раздельный – соедините его. Это позволит хоть немного увеличить пространство.
Предпочитайте традиционной ванне душевую кабинку, которые занимают меньше пространства. На месте промежуточной стенки можно установить раковину, чтобы не разгрузить пространство.
В качестве отделки лучше взять глянцевый, светлый кафель. Он неплохо справляется со зрительным увеличением комнаты, чего и нужно добиваться.
Прихожая и коридор
Еще одна проблемная зона, но сделать перепланировку здесь не получится.
Нужен грамотный ремонт, который зрительно увеличит комнату.
Стены оформите нейтральными цветами: белый, пастельный, серый и прочие. Для хранения гардероба, правильнее будет купить большой шкаф-купе с зеркалами на дверях.
Используйте поменьше декора: полок, картин, различных подвесок. Это только уменьшит пространство, а пользы почти не будет.
Место для работы
Если необходима уединенная рабочая зона – выделите несколько метров гостиной под эти цели. Чтобы отделить от остальной комнаты, воспользуйтесь шторами или другими техническими перегородками.
Из мебель, кроме рабочего стола, поставьте полочки. На них можно разместить папки, книжки, различную компьютерную периферию.
Кладовка
Если дизайн-проект двухкомнатной квартиры на 43-44 метра позволяет оборудовать кладовую (или она уже есть) – используйте ее в качестве хранилища.
Например, классический вариант кладовки-хранилища для всего, что не влезло на кухню и гостиную.
Так можно будет разгрузить основные комнаты.
Можно обустроить и гардероб. Это значительно уменьшит захламленность спальни и прихожей, ведь одежду и обувь можно хранить там.
Фото-примеры дизайна
Посмотреть фото правильного ремонта в 2х комнатной хрущевке вы можете ниже.
Ремонт в хрущевке 2х комнатной
Миллионы людей живут в малогабаритных квартирах с типовой планировкой. Мечтая о современном и удобном жилье, одни владельцы задумываются о переезде.
Другие же устраивают ремонт в хрущевке 2-х комнатной, фото которой после проведенных работ едва ли выдает время постройки дома. Благодаря огромному ассортименту строительных материалов и безграничным вариациям готовых дизайнерских решений, сегодня можно реализовать любые желания. Главное не пренебрегать советами специалистов.
Оглавление статьи:
Отличия хрущевской двушки от других квартирХрущевки — первые многоэтажные дома массовой застройки. Во времена СССР квартиры в них раздавали практически бесплатно, что решило вопрос острой нехватки жилья. Небольшая площадь, проходные комнаты, неудобное расположение дверей отличает их от “сталинок” и других домов. Есть и другие, не менее значимые недостатки: низкая шумоизоляция, невысокие потолки, маленькие прихожая и кухня, отсутствие балкона на первом этаже. На нынешнем рынке такая недвижимость мало ценится.
Несмотря на очевидные минусы, плюсы здесь тоже есть. В каждом жилище времен Хрущева Н.
С. предусмотрены кладовки. Санузел обычно совмещен, что экономит место. А варианты дизайна таких помещений безграничны. Зачем покупать типовую мебель и жертвовать большой ванной, если даже в советской двушке реально осуществить любые идеи?
Снести межкомнатные перегородки — самое простое решение. В зависимости от того, каким планируется дизайн двухкомнатной хрущевки, объединяются комната и кухня, прихожая и зал, кладовка и спальня. Если ванная и туалет разделены, стену между ними стоит убрать. В результате увеличится полезное пространство, жилище визуально станет больше.
Перед сносом стен необходимо проконсультироваться со специалистом и обратиться в соответствующие службы для получения разрешения.
Убирать допускается только ненесущные опоры или необдуманные действия приведут к трагедии. Ломать всю стену не обязательно, иногда достаточно сделать широкую арку. Такой способ уместен для организации обеденной зоны в комнате, ведь маленькая кухня не позволит установить большой стол и стулья.
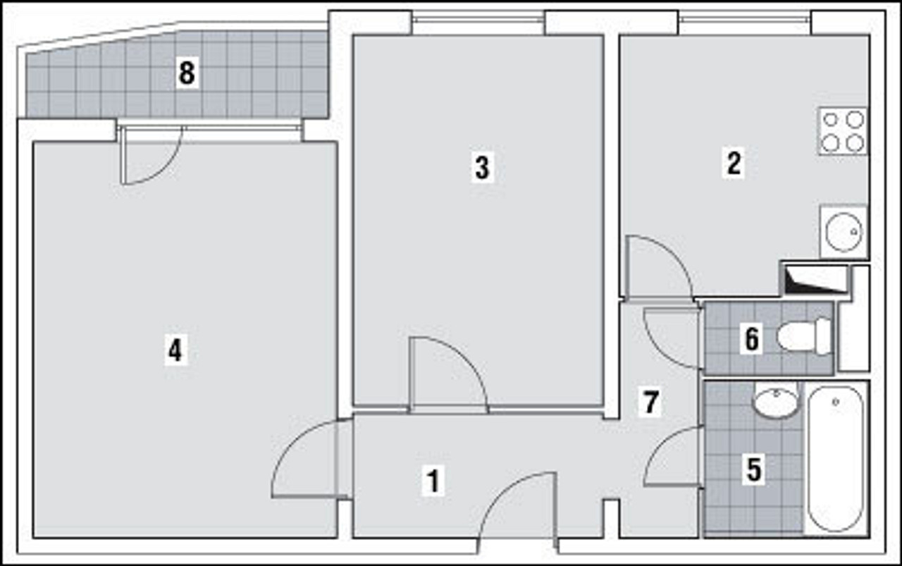
Планировка хрущевок, состоящих из 2 комнат, бывает 4 видов:
Тип планировки | Общая площадь | Особенности расположения комнат |
Книжка | 42-43 кв. м | Кухня, зал и спальня находятся друг за другом. |
Трамвай | около 47 кв. м | Две комнаты в такой квартире имеют одну, смежную стену. Гостиная обычно угловая. |
Улучшенная | 43-45 кв. м | Квартира без проходной комнаты с очень маленькой кухней и раздельным санузлом. |
Бабочка | 46 кв. м | Кухня располагается между двумя комнатами. |
“Книжка” достаточно неудобная, как в первоначальном виде, так и в измененном. Так как комнаты следуют друг за другом, сделать радикальное перепроектирование помещения невозможно.
Объединение комнатПри входе в дом первое, что бросается в глаза — прихожая. В хрущёвке она маленькая, узкая и темная. Если увеличить дверной проем в комнате, коридор станет светлее и визуально больше. С этого обычно и начинается составление плана ремонта 2-комнатной квартиры.
Что касается радикального сноса стен, чаще всего объединяют:
- Кухню и зал. На месте убранной стены устанавливается барная стойка или стол с мягким диваном.
- Зал и спальню. Подходит для семьи без детей. При наличии ребенка детская в хрущевке оформляется путем зонирования помещения.
- Зал и кабинет. Для создания рабочего пространства подойдет стеллаж или мобильные ширмы. Иногда дизайнеры используют невысокий подиум.
- Спальню и кабинет. Комната разделяется на 2 функциональные зоны, стол для работы ставится около окна.
Перестройка малогабаритной квартиры 40 кв. м или другой площади не обходится без зонирования. Каждому члену семьи необходима личная зона в квартире. При этом нельзя уменьшать и без того маленький размер кухни. Рабочее место должно быть вместительным. Для разделения разных участков используются:
- гипсокартонные фальшстены;
- передвижные перегородки;
- занавески, шторы;
- диваны, шкафы, другие предметы мебели;
- разноуровневые потолок и пол.

Раздвижные двери — лучшая альтернатива распашным. Они удобны в обращении и стильно смотрятся.
ОтделкаЭффективным способом зрительного увеличения пространства любой дизайнер назовет использование светлых оттенков. Но это утверждение нельзя воспринимать буквально, иначе ремонт в 2х комнатной хрущевке по фото будет напоминать больничную палату. То же касается и 1х, 3х комнатных квартир. Удачное сочетание цветов приведет к успешному обновлению интерьера.
ПолыЕдинственное строгое требование к выбору напольного покрытия — табу на темные оттенки. В домах небольшого размера пол является фоном для других предметов и не должен привлекать внимание. Лучшие цвета: серый, бежевый, молочный. Также уместна имитация фактуры дерева или сам натуральный материал. Ламинат, паркетная доска, линолеум, ковролин, плитка — любое покрытие эффектно дополнит дизайн, если учтены требования к цвету.
ПотолкиЧем ярче освещение в маленькой комнате, тем лучше.
В дополнение к люстре рекомендованы точечные светильники, расположенные по периметру. Скрыть все неровности и дефекты на потолке поможет натяжной вариант. Не менее выгодно смотрится многоуровневый верх.
Прежде чем приступить к отделке стен, в 9 случаях из 10 их придется выровнять. В панельных домах, как и кирпичных, разница в высоте или наклоне разных стен достигает 2-3 см. Даже если кривизна не бросается в глаза, она создаст большие проблемы при ремонтных работах. Поверхность выравнивается шпаклевкой или гипсокартоном. По окончании подготовки комната оформляется обоями, например:
- флизелиновыми, виниловыми, акриловыми с вертикальным рисунком;
- фотообоями с городским пейзажем или природой;
- жидкими бесшовными обоями.
Цвет стен должен гармонировать с задуманным дизайном хрущевки, состоящей из 2 комнат. Правило “чем выше цена, тем лучше” работает не всегда. Даже самая дорогая шелкография подходит далеко не к каждому интерьеру.
Хрущевка должна быть оснащена мебелью для хранения всевозможных вещей. Из кладовки возможно сделать полноценную гардеробную, даже если ее величина всего 1 на 2 м. Задействуется все свободное пространство — снизу и сверху. Корпусная мебель здесь будет неуместна, лучше установить несколько открытых полок, вешалки, крючки.
Оставлять место под кроватью пустым нерационально, так же как и использовать глубокий шкаф без выдвижных штанг и пантографа. Многофункциональная мебель — оптимальное решение для малогабаритной двухкомнатной квартиры с неудачной планировкой.
Планирование освещенияМассивные люстры в маленьких комнатах с низкими потолками совершенно не к месту. В качестве базового освещения лучше использовать софиты, бра, торшеры с теплым, рассеянным светом. Вспомогательный свет необходим в рабочей зоне на кухне, в ванной, детской, кабинете. С этой задачей справятся настольные лампы и подвесные светильники.
Декоративный свет не обязателен, но в некоторых интерьерах он служит эффективным дополнением.
Как использовать площадь балконаПравильно организованное освещение скрывает недостатки и выделяет достоинства дома.
Балкон есть во всех квартирах времен Хрущева, кроме первого этажа. Там хранят редко используемые вещи или вовсе всякий хлам. Практичные хозяйки сушат продукты и развешивают стираное белье. Но дополнительные квадратные метры могут принести куда больше пользы: 2-х комнатная квартира площадью 44 кв. м легко станет 3-х комнатной. Из балкона получится отличный кабинет или зона отдыха. Главное не пожалеть сил и средств на хорошее утепление.
Цветовые акценты и декорЧтобы комната казалась больше, не нужно применять исключительно светлые оттенки. Главное, чтобы они были в приоритете. Цветовые акценты не только “оживят” и украсят комнату, но и помогут сделать ее объемнее.
Самый яркий элемент необходимо разместить на самом видном месте, но как можно дальше от входной двери. Он будет притягивать внимание, создавая эффект увеличенного пространства. Это могут быть: фотообои, стильный диван, декорированный шкаф и др.
В отличие от кухни, зала и спальни, в санузле приветствуются только светлые оттенки. Для контраста допускается точечный цветной декор, но в очень ограниченном количестве. Для повышения эргономичности помещения требуется нестандартный подход к организации системы хранения. Полки над раковиной, унитазом и даже над дверью позволят разместить все необходимые мелочи.
Подбираем мебельМебель стандартных размеров, предназначенная для типовых квартир — пережиток прошлого. Современный дизайн двухкомнатной квартиры 44 кв. м требует оригинальных, стильных и смелых решений. Компактность и многофункциональность — ключевые качества, которыми должны обладать шкафы, спальные места, гарнитуры.
Другие, не менее важные рекомендации:
- убирать самые крупные предметы в дальний, малоосвещенный угол;
- использовать глянцевые, светлые, стеклянные фасады для шкафов, комодов и яркие насыщенные цвета для мягкой мебели;
- выбирать спальные места с внутренними отсеками для белья;
- отдавать предпочтение открытым полкам на мебельных стенках и отдельно стоящих стеллажах.
Самой практичной считается мебель-трансформер. Шкаф, совмещенный с кроватью или диван с письменным столом по функциональности не уступают более простым аналогам, и при этом занимают минимум места.
Какой стиль лучше выбратьСтрогих требований к оформлению хрущевки не существует. Главное не совмещать между собой несочетаемые элементы и придерживаться одной цветовой гаммы. Из всех существующих стилей лучшими будут современными, где центральное место занимают свобода пространства и функциональность:
- минимализм — максимум света, минимум декора, легкие занавески и отсутствие громоздких вещей;
- скандинавский — преимущественно светлое оформление с ненавязчивым декоративными элементами: картинами, цветами;
- хай-тек — простые геометрические формы, глянец, металлический блеск, тонкие рамки для картин, обилие света;
- прованс — пастельные и природные оттенки, эффект старины, полупрозрачные занавески, рюши, кружева, статуэтки и скатерти.

Частые ошибки в ремонте двухкомнатной хрущевкиИз-за ограниченного пространства в хрущевках редко встречается стиль барокко, рококо или ампир.
При выполнении ремонта в двухкомнатной хрущевке ошибки неизбежны. Перед началом работ стоит учесть самые распространенные, чтобы избежать потери времени и денег.
Сложные подвесные потолкиВысота потолков в старых домах обычно не превышает 2,5 м. Нагромождение деталей в верхней части помещения визуально сделает их еще ниже. Не рекомендуется делать сложные, многоступенчатые конструкции. Тем же негативным эффектом обладают “бабушкины” большие люстры. Лучшая альтернатива — плоский плафон или встроенные софиты.
Маленькое количество розетокЧтобы не ошибиться с расположением розеток, необходимо заранее продумать где будут установлены бытовая техника и осветительные приборы. Лучше сделать на 1-2 точки больше, чем столкнуться с их нехваткой.
Электрические удлинители спасут ситуацию, но в миг испортят обстановку.
Объединение кухни и зала — один из самых популярных способов перепланировки. Но если дом газифицирован, этого делать нельзя. Запрет обусловлен минимизацией человеческих и имущественных потерь в случае взрыва. Он прописан на законодательном уровне, поэтому получить разрешение на снос стены невозможно.
Фото
Видео
youtube.com/embed/G83bdNzSRx0?feature=oembed» frameborder=»0″ allow=»accelerometer; autoplay; encrypted-media; gyroscope; picture-in-picture» allowfullscreen=»»/>
Ремонт в 2х-комнатной хрущевке (86 фото): от дизайна до планировки
Учитываем особенности планировки
Типовая хрущевка имеет очень маленькую кухню – 5-6 квадратов. Ещё одна особенность – невысокие потолки до 2,7 метров. Двушки без перепланировки зачастую бывают неудобны, особенно, если вторая комната проходная.
Стандартная площадь двухкомнатной хрущевки – около 43-44 кв метров.
Дома пятиэтажные. В большинстве своем комнаты смежные, окна выходят на одну сторону (за исключением угловой квартиры с двумя окнами). В качестве достоинств хрущевки можно выделить наличие кладовки и балкона.
Посмотрите стильный дизайн-проект двухкомнатной квартиры 44 кв м в хрущевке.
Рассмотрим самые распространенные типы планировок подробней.
Книжка
Такая планировка считается самой неудачной: проходная комната с широким дверным проемом играет роль столовой, а в семье с детьми – ещё и спальни. Уединенности в таком пространстве добиться трудно. Чтобы разделить помещения, придется пожертвовать частью комнаты. Без перегородок, на снос которых необходимо получить разрешение, хрущевку можно превратить в просторную студию.
На фото маленькая угловая кухня со встроенным холодильником и столом, вписанным в подоконник.
Трамвайчик
Такое народное название (также употребляется слово «паровозик») планировка получила за расположенные друг за другом комнаты, напоминающие вагоны.
Гостиная с балконом является проходной, но переделка решает эту проблему: если отсечь часть комнаты и превратить ее в коридор с двумя входами, в получившейся нише можно организовать систему хранения.
На фото комната в кремовых тонах с акцентной стеной в телевизионной зоне.
На фото проект двухкомнатной хрущевки 44 кв. м.
Распашонка
Вполне удобная планировка, при которой комнаты разделены кухней и прихожей, но такой тип хрущевки встречается нечасто. Также ее называют «бабочкой» благодаря схожести комнат с симметричными крыльями.
На фото крошечная кухня, где глянцевые белые шкафчики-нивидимки занимают всё межпотолочное пространство.
Продумываем перепланировку
Обладатели бюджетных двухкомнатных хрущевок все чаще решаются на переделку квартиры, и это правильно: перепланировка позволяет разделить две комнаты, изолировать членов семьи друг от друга, увеличить свободное пространство.
Важные моменты при реконструкции квартиры
Прежде, чем начать перестройку, необходимо обратить внимание на несколько нюансов:
- Перед ремонтом следует составить подробный дизай-проект со всеми расчетами. Это поможет избежать заминок в будущем.
- Все изменения в хрущевке должны быть внесены в технический паспорт квартиры, для этого нужно обратиться в БТИ.
- Не все перекрытия внутри хрущевки не являются несущими, поэтому согласовать такую переделку будет несложно. Но существуют моменты, когда это вообще невозможно!
Популярные варианты
Практика показывает, что реконструкции хрущевок дают потрясающий результат – при совмещении санузла освобождается место для стиральной машинки; при сносе перегородки между комнатой и кухней появляется пространство для обеденного стола. На приведенных ниже схемах показано еще несколько способов повысить комфорт двухкомнатных хрущевок.
2 смежные комнаты в хрущевке
Смежными называются помещения, имеющие общую стену.
Планировка со смежными комнатами и разными входами называется «мини-улучшенка». Если в квартире есть кладовка, за счет нее можно увеличить площадь кухни: кладовая разбирается, санузел переносится на ее место, а к площади кухни прибавляется 3 кв метра.
На фото увеличенная кухня в двухкомнатной хрущевке, где нашлось место обеденному столу.
Без перегородки между кухней хрущевка превратится в евродвушку, а владелец получит просторную кухню-гостиную. Если кухня газифицирована, проем необходимо оборудовать раздвижной перегородкой. Лоджию можно утеплить и использовать в качестве кабинета.
С проходной комнатой
Такая планировка удобна, если человек живет один. В крошечной кухне хватит места для небольшого столика и всего необходимого для готовки, а одна из комнат станет гостиной с проходом в спальню. Если же в двухкомнатной хрущевке проживает пара или семья с ребенком, квартира нуждается в переделке. За счет возведения дополнительной перегородки увеличивается коридор, межкомнатная дверь переносится на новое место и жильцы получают две изолированные комнаты.
На фото обновленная хрущевка, где проходная комната выступает столовой и гостиной.
За счет реконструкции полового покрытия многие дизайнеры добиваются увеличения высоты помещения до 3 метров. Это позволяет визуально поменять облик помещения, встроить высокие вместительные шкафы и установить кровать-чердак.
Из двушки в трехкомнатную
При обустройстве трешки в малогабаритной хрущевке комнаты значительно уменьшатся в размере. Одна из них может лишиться дневного освещения. Выход в такой ситуации – окна в перегородке, проемы под потолком или фальш-окно.
На фото полностью измененная двухкомнатная хрущевка: спальня расположена за стеной с окном, а коридор переоборудован в гостиную.
Студия в хрущевке
Если снести все стены (за исключением несущих), получится квартира со свободной планировкой. Останется лишь зонировать пространство столом, легкими перегородками или мягкой мебелью.
На фото современная квартира с историей и свободной планировкой.
Делаем грамотное зонирование
Просторное помещение часто нуждается в разделении на зоны. Кухню от комнаты удобно отгородить столом или барной стойкой. Для того, чтобы скрыть кровать в гостиной, возводятся стеклянные или реечные перегородки, ставятся ширмы, вешаются шторы. Важно, чтобы конструкция не «съедала» пространство.
На фото небольшая кухня отделена многофункциональной барной стойкой.
Полезно отделить зоны открытым стеллажом: он сыграет не только роль перегородки, но и станет местом хранения вещей.
На фото стеллаж-перегородка, который отделяет диван и кровать. Чтобы не захламлять комнату, часть вещей убрана в коробки.
Прорабатываем дизайн каждой комнаты
Рассмотрим дизайн двухкомнатной хрущевки в деталях, ведь каждое отдельное помещение имеет свои особенности.
Дизайн гостиной в хрущевке
Чем больше в квартире проживающих, тем сильнее загружена центральная комната в хрущевке – зал.
Чтобы всем членам семьи было не только удобно собираться здесь по вечерам, но и принимать гостей, место для сна должно быть скрыто. Хороший выход – раскладной диван-кровать. В сложенном виде он не занимает много пространства. Напротив него можно повесить телевизор или установить декоративный камин. Иногда проходная комната может совмещать роль столовой, гостиной и спальни.
Кухня
В тесной кухне 6 кв. метров непросто разместить современное оборудование и обеденную зону. Без перепланировки на такой небольшой площади с трудом умещается четырехкомфорочная плита, рабочая поверхность и холодильник.
Смотрите подборку идей для кухни в хрущевке.
Чтобы сэкономить драгоценные сантиметры, рекомендуется использовать встроенную технику (она занимает меньше места), двухкомфорочные плиты, мебель-трансформер. Если перенести коммуникации к окну, раковину можно встроить в подоконник. Столовую проще оборудовать в комнате, либо в освободившемся после сноса перегородки проходе между кухней и комнатой.
На фото кухня в двухкомнатной хрущевке, оклеенная фотообоями с перспективой, которые делают помещение визуально глубже.
Спальня
Место для сна и отдыха чаще всего располагается в дальней комнате. В типовых сериях это узкое пространство, напоминающее вагончик, в котором найдется место для двуспальной кровати, шкафа и столика. Оформляется в нейтральных тонах, чтобы не перегружать обстановку. Для расширения пространства используются зеркала, а для придания интерьеру легкости – мебель на ножках.
Посмотрите еще примеры дизайна спальни в хрущевки.
Отличный вариант – использование зеркальных шкафчиков по бокам от кровати, которая как бы углубляется в нишу. Для хранения вещей используется полка в изголовье.
Ванная и туалет
В двухкомнатных хрущевках распространены как раздельные, так и совмещенные санузлы. Наилучшим способом сохранить свободное место является установка душевой кабины, но не каждый годов отказываться от полноценной ванны.
Посмотрите обязательно как сделать красивый дизайн в ванной.
Стиральную машину можно установить под раковину или вместо неё. Для сохранения воздуха и света в маленькой ванной стоит использовать минимум разноцветных элементов и открытых полок. Для отделки лучше выбирать белую глянцевую плитку, ее применение дает потрясающий эффект: зрительно стираются границы, увеличивается количество света.
На фото белая ванная в минималистичном стиле, ниша которой оформлена зеркалом.
Детская комната
Небольшие габариты двухкомнатной хрущевки для семьи с ребенком – не повод отказываться от интересного и функционального дизайна: нужно всего лишь применить несколько хитростей при ремонте, которые позволят вместить в детскую всё необходимое. Это и изображения на стене, и угловые столы, и двухъярусные кровати. Нельзя пренебрегать и межпотолочным пространством – там могут разместиться шкафчики с вещами.
Посмотрите обязательно как грамотно оформить детскую в хрущевке.
Прихожая и коридор
Чтобы использовать прихожую в хрущевке для хранения верхней одежды и обуви, рекомендуется выбирать шкаф до потолка: так сохранится пространство и поместится больше вещей. Некоторые двухкомнатные хрущевки оснащены кладовками, которые можно переоборудовать в гардеробные.
Кабинет или рабочее место
Место для работы за компьютером часто требует уединенности. Кабинет можно обустроить на утепленном балконе, в нише, выделить несколько метров у окна или спрятать за шторами.
Что важно учесть при ремонте квартиры?
Маленькая квартира может выглядеть стильно и просторно, если подойти к ремонту с фантазией. Специалисты рекомендуют оформлять стены и потолок в светлых пастельных оттенках, но от этих советов всегда можно отступить: например, сделать потолок на полтона темнее, добавить ярких акцентов, оригинальной мебели, динамичных принтов. Декоративный камин украсит гостиную, придаст уюта и элегантности.
На фото светлая отделка в гостиной с встроенным шкафом-купе с зеркальными дверями, который значительно экономит место, увеличивает свет и зрительно углубляет комнату.
На фото ремонт двухкомнатной хрущевки в стиле прованс.
В тренде по-прежнему пол с натуральными текстурами под дерево, который сочетается с любой обстановкой и придает тепла. При ремонте узких помещений следует укладывать ламинат или паркет поперек комнаты, чтобы зрительно расширить ее. Лучше, если вся квартира будет иметь одинаковое напольное покрытие (кроме санузла и кухни): это позволит поддержать единство дизайна.
Смотрите еще один интересный проект ремонта в двушке за 800 тр.
На фото гостиная в стиле лофт с ламинатом, уложенным поперек помещения.
Обустраиваем двушку с комфортом
Чтобы сделать пространство уютнее и интереснее, в двухкомнатной хрущевке стоит использовать многоуровневое освещение. Точечные светильники в потолке выглядят современно и отличаются функциональностью: можно развести проводку так, чтобы регулировать количество света.
Локальное освещение углубляет пространство, а свет, направленный сверху, подчеркивает невысокие потолки.
Расстановка мебели играет не менее важную роль. Обычно комнаты делятся на «приватную» и «общественную» зоны. Даже если в квартире проживает больше двух человек, вполне реально создать для каждого свой уголок. Например, кровать на подиуме, которая выступает местом для хранения и сна, дает ощущение приватности и уединенности.
Чтобы сэкономить место в общей зоне, можно использовать угловой диван (он занимает угол, который зачастую остается свободным), а вместо стульев для столовой приобрести табуретки (их легко спрятать под стол).
На фото гостиная с оригинальной люстрой и домашним кинотеатром, украшенным лентой с LED-подсветкой.
Декор и текстиль – то, что придает типичной двухкомнатной хрущевке оригинальности. Плотные шторы добавляют уюта, но сужают пространство и поглощают свет, поэтому, чтобы не перегружать комнату, стоит выбирать однотонную лаконичную ткань.
Яркие декоративные детали (картины, фотообои с модными принтами, акцентные стены) смотрятся выигрышно лишь на нейтральном фоне.
Выбираем стиль помещения
Придерживаясь определенного стиля в оформлении двухкомнатной хрущевки, владелец обеспечивает своему жилью привлекательность и особенный характер, а малые габариты квартиры отходят на второй план. Кто обратит внимание на тесную гостиную, если она будет выдержана в стиле лофт? Залитая светом, с состаренной кирпичной кладкой и оригинальной мебелью, индустриальная квартира будет вспоминаться как стильное пространство, а не «хрущевка».
Скандинавский подход станет идеальным для маленькой квартиры: светлые тона, натуральные текстуры и тонкие линии в декоре и дизайне мебели удивительным образом придадут интерьеру воздушности, простора и вместе с тем уюта. Если применить те же приемы, сократив количество вещей и украшений, двухкомнатная хрущевка будет оформлена в стиле минимализм, который отличается сдержанностью и лаконичностью.
Современный стиль вбирает в себя все самое лучшее от других направлений, отличаясь продуманностью и привлекательностью обстановки. Яркие акценты используются повсеместно, а мебель отличается многофункциональностью. Освещение, цветовое оформление и зеркала будут играть на увеличение площади, идеально вписываясь в интерьер.
Классический стиль, благодаря изысканной мебели, роскошному декору в виде арок, лепнины и дорогого текстиля создаст утонченный интерьер, в котором будет легко забыть о небольших габаритах двухкомнатной хрущевки.
Хай-тек – тот стиль, который стоит особняком среди других. Словно подсмотренный из будущего, с обилием подсветки, глянцем и округлой мебелью в светлых тонах, он растворит границы и сделает хрущевку неузнаваемой.
На фото обеденная зона, оформленная зеркалами, которые придают помещению сложности и глубины.
Фотогалерея
Советские типовые квартиры не хуже других годятся для комфортного проживания: перепланировка сможет вдохнуть в хрущевку новую жизнь, а стильный и продуманный ремонт скроет недостатки маленького пространства.
Дизайн двухкомнатной «хрущевки» — интересные идеи (124 фото): 2-х комнатные квартиры 44 м2 и 43 кв. м, кухня и зал, идеи оформления для комнаты
Ремонт «хрущевки» – настоящее испытание, особенно если из старой квартиры неудачной планировки хочется сделать современную и удобную. Главный враг старых квартир – узкий коридор, маленькая кухня, неудачное расположение дверей, проходные комнаты и, конечно, небольшая квадратура. Но на сегодняшний день можно реализовать даже самый смелый и необычный проект, и для этого совсем не обязательно быть профессиональным дизайнером. Достаточно проанализировать особенности квартиры, изучить ранее реализованные проекты и составить дизайн-проект.
Особенности
Построенные в середине прошлого столетия дома до сих пор остаются единственным жильем для миллионов семей.
И на сегодняшний день кирпичные и крупнопанельные дома до пяти этажей считаются наихудшим архитектурным решением. Зачастую самым простым способом усовершенствовать удручающую планировку квартиры является снос межкомнатных перегородок. При некоторых планировках возможно объединить кухню и комнаты, прихожую и комнату, ванну и туалет. Это позволит расширить площадь квартиры, добавить несколько необходимых метров. Также в некоторых квартирах есть кладовая, которую можно объединить с жилой комнатой.
Размеры коридора обычно наводят тоску. Узкая и темная прихожая в редких случаях может вместить шкаф-купе, поэтому необходимо делать акцент на функциональности, по возможности избавиться от не несущих стен. Если санузел изначально раздельный, его стоит объединить. Тогда можно будет выделить место для стиральной машины и большой угловой ванны. Чтобы сэкономить пространство, можно отказаться от раковины или от ванны в пользу душевой кабины. Любая перестройка стен должна быть согласована со специалистом, независимо от того, в каком доме она проводится: крупнопанельном или кирпичном.
Особенности квартиры не дают возможности перенести кухню в другое место, но зато можно вынести обеденную зону в гостиную. Для этого можно снести перегородку между кухней и комнатой или сделать арочный проем. Такой широкий проход визуально разделит пространство и создаст эффект увеличения площади. Вместо большого вместительного стола можно оставить место на кухне для барной стойки, за которой могут комфортно разместиться до 4 человек.
Размеры
На маленькой площади очень хочется обустроить красивую и комфортную для жизни квартиру. Современные дизайнерские идеи позволяют создать уютный интерьер, поэтому дизайн-проекты для квартир до 43 кв. м по-прежнему пользуется популярностью. Все типовые двухкомнатные «хрущевки» имеют схожую планировку и площадь:
- Общая площадь составляет 41-48 квадратных метров.

- Квартиры площадью до 41 кв. м имеют смежные комнаты.
- Высота потолка – 2,5-2,6 м. В некоторых сериях домов потолки достигают 2,7 м.
- Площадь кухни варьируется от 4,9 до 8 м2.
Планировка квартиры в 42 кв. м называется в народе «книжка». Она считается наиболее неудачной, потому что имеет небольшие комнаты, одна из которых проходная. Квартира площадью 44 кв. м имеет уже раздельные комнаты, но небольшая кухня доставляет определенные неудобства и требует кардинальных решений. В квартире метражом в 45 кв. м комнаты расположены симметрично, поэтому они получили в народе названия «распашонка» или «бабочка».
Комнаты
Вариантов обустройства двухкомнатной «хрущевки», на самом деле, не так уж много, но делать квартиру с неудачной планировкой и низкими потолками комфортной и удобной вполне реально.
Для этого, в первую очередь, необходимо понять, какой вид ремонта стоит провести: капитальный с заменой всех инженерных и коммуникационных сетей и сносом перегородок или простой косметический ремонт без перепланировки.
Существует три распространенные планировки двухкомнатной «хрущевки»: «книжка», «трамвай» и «полуторка» с улучшенной планировкой. Самое маленькое помещение в любой квартире – это прихожая. Расширить ее площадь можно только за счет увеличения дверного проема. Так будет поступать больше естественного света, и прихожая визуально расширится. Если же прихожая длинная, но узкая, ее можно поделить на две части. Первая будет стандартной прихожей возле входной двери, а вторая станет переходом в комнату.
Пожалуй, самый интересный вариант можно получить только путем полной трансформации квартиры, при этом важно использовать эффективно каждый квадратный метр. Для этого можно снести межкомнатные перегородки и обустроить квартиру по типу «студии», сделав акцент на свободе и просторе.
Такой способ увеличит жилую площадь и расширит пространство. Также можно отказаться от узкого проходного коридора и расширить санузел. Перед началом работ необходимо составить план будущей квартиры и согласовать перепланировку. Самые распространенные варианты объединения зон:
- зал-кухня-столовая. Для объединения трех зон в одном помещении необходимо снести перегородки или оборудовать арочный дверной проем. На линии разделения комнаты и кухни или в комнате располагается обеденная зона с мягким диваном или барная стойка с высокими стульями.
- Спальня-гостиная. Распространенный вариант обустройства квартиры, если в семье есть ребенок, и одна комната отводится для детской. При таком способе зонирования необязательно сносить межкомнатные перегородки, можно использовать разные способы зонирования помещения.
- Кабинет-гостиная.
Самый оптимальный способ отделить рабочую зону – приподнять ее на подиум. Также можно использовать мобильные перегородки или стеллаж с открытыми полками. Однако следует помнить, что громоздкие перегородки способны визуально уменьшить пространство. - Кабинет-спальня. В таком случае, рабочий стол можно расположить поближе к окну, использовать гипсокартонную стену или стеллаж. Также при помощи освещения можно поделить комнату на две независимые функциональные зоны.
Зонирование
Главный враг маленьких квартир – хаос, беспорядок и нагромождение. При составлении плана «двушки» важно учитывать несколько основных моментов:
- у каждого члена семьи должна быть личная зона, и размер этой зоны, как правило, не играет особой роли.

- Ну кухне обязательно должна быть выделена вместительная и функциональная рабочая зона с плитой, посудомоечной машиной и раковиной. Если используется газовая плита, то объединять кухню с комнатой нельзя, но можно расширить дверной проем, использовать раздвижные двери. И в тоже время, категорически запрещается менять положение газовой плиты и закрывать доступ к ней.
- Вторая комната может выделена под спальню или детскую комнату. В ней можно разместить большую систему хранения, кровать, туалетный столик или рабочий стол.
- Если в комнате будет жить ребенок, то можно поставить кровать, рабочий стол и шкаф, при этом останется свободное пространство для игр. Если в комнате будут жить двое детей, то лучше выбрать функциональную трансформирующуюся мебель или двухъярусную кровать. Место у окна можно оборудовать под рабочий стол, чтобы для каждого ребенка была отдельная зона для учебы.

Способов зонировать пространство много. Самые распространенные и востребованные:
- использование разных способов отделки стен;
- дополнительные фальшстены из гипсокартона;
- мобильные перегородки и ширмы;
- шторы, занавески и шторы-нити;
- предметы мебели, шкафы, диваны;
- разные уровни пола и потолка.
Еще одна хитрость зонирования «хрущевки» – это большое светлое пространство. Если снести стены возможности нет, то можно отказаться от привычных дверей в пользу раздвижных. При помощи таких «номинальных» дверей можно создать единое пространство или скрыть от посторонних глаз отдельную зону.
Отделка
Мнение о том, что в интерьере небольших квартирах необходимо использовать исключительно светлые цвета, несколько преувеличено, ведь пастельные тона могут превратить квартиру в больничную палату.
На самом деле, можно сочетать яркие и насыщенные оттенки, просто делать это надо аккуратно и умеренно. Выбор цвета – безусловно, индивидуальное решение, но стоит помнить, что оттенки оказывают особое влияние на настроение человека:
- бежевый, светло-серый, кремовый, бледно-желтый и другие пастельные оттенки являются самыми популярными во всех современных стилях. Разнообразить такой интерьер можно при помощи черного, коричневого или любых ярких цветов.
- Вся палитра зеленого отлично сочетается с белым и коричневым, отлично подходит для эко стиля и при этом создает особое расслабленное настроение.
- Яркие и насыщенные цвета можно использовать в интерьере квартиры даже при оформлении стен, но важно разбавлять краски светлыми оттенками, которые могут присутствовать в мебели, занавесках и текстиле.

- Синий и голубой в интерьере отлично сочетаются с белым и серым. Также можно добавить солнечных красок, разбавив холодные оттенки желтым или зеленым.
Важно уметь сочетать цвета и оттенки, не бояться смелых решений и объединить отделку пола, стен и потолка в одном направлении. Тогда даже старая 2-х комнатная квартира может стать уютным и современным жильем.
Полы
Варианты отделки пола зависят от предпочтений и финансового состояния владельца квартиры. Можно выбрать стандартный линолеум, ламинат, плитку или ковровое покрытие, но все же любое покрытие лучше делать в светлых тонах или в максимально приближенной к ним цветовой палитре. Это могут быть серые, бежевые, белые оттенки или рисунки, имитирующие натуральное светлое дерево.
Ламинат и паркетную доску лучше укладывать вдоль длинной стены.
Проблема двухкомнатных «хрущевок» состоит в том, что могут возникнуть трудности при ремонте пола и сохранении единого рисунка, потому что комнаты могут находиться по разным сторонам здания, иметь разную форму. Поэтому лучше выбрать доски с неоднородным рисунком, который нет необходимости подбирать. Ковролин редко используется во всей квартире из-за своей непрактичности, но это отличный способ утеплить холодную комнату.
Потолки
Самый простой способ отделки потолка в малогабаритной квартире – использовать натяжной вариант. Он скроет все изъяны, неровности и трещины. Также можно использовать многоуровневые потолки с дополнительным светодиодным освещением. Дополнительное освещение по периметру потолка визуально увеличит длину комнаты.
Цвет потолка обязательно должен быть приближен к белому. Темные оттенки психологически будут давить, визуально уменьшат высоту потолка. Также отлично смотрится многоуровневый потолок с точечными встроенными светильниками.
Яркое освещение и сложные конструкции визуально «приподнимут» потолок и расширят пространство.
Стены
Самый распространенный способ отделки квартиры – выравнивание стен при помощи шпаклевки и оклеивания обоями. Несмотря на кажущуюся простоту работы, на самом деле, процесс очень затруднительный, потому что стены «хрущевки» не считаются ровными, а поклеить обои встык при этом получится не всегда. Местами разница между полотнами может достигать 2 см, поэтому потратить время и силы на идеальное выравнивание стен все же стоит. Существует несколько способов отделки стен:
- обои остаются самым распространенным вариантом. Можно использовать дорогие полотна с шелкографией. Лучше отдавать предпочтение обоям с вертикальными небольшими узорами и рисунками. Они помогут достичь эффекта высокого потолка.

- Отлично в небольшом помещении смотрятся фотообои с перспективой: городские пейзажи или природный ландшафт украсят любую комнату и создадут иллюзию присутствия.
- Отличная альтернатива – жидкие обои. Они легко наносятся и скрывают все изъяны неровных стен. Текстура позволяет создавать бесшовную поверхность, разнообразить интерьер необычными узорами.
Мебель
Разместить всю необходимую мебель в «хрущевке» – уже удача, но если вы хотите создать уникальный современный интерьер, то нужно выбирать стильную и компактную мебель. Все габаритные предметы (шкаф, диван, комод) стоит убрать в самый темный угол подальше от окна. Использовать лучше раскладные столы, раздвижные диваны, многофункциональные комоды.
В качестве системы хранения стоит выбирать встроенную мебель с глянцевыми, светлыми или стеклянными дверцами, поскольку темные цвета сделают мебель более громоздкой и тяжелой. Мягкая мебель может быть яркого и насыщенного цвета.
Кровать в спальню лучше выбрать с внутренними ящиками для хранения вещей и текстиля. Как будет осуществляться доступ – каждый решает сам. Существует два варианта: выдвижные ящики или подъем спального места. Каждый из них имеет плюсы и минусы. В выдвижных ящиках помещается меньше вещей, но доступ к ним облегчен, возможен в любое время. С подъемным механизмом дела обстоят абсолютно противоположно: места для хранения в разы больше, но доступ к ним может быть ограничен, если в это время на кровати спит человек. Цены на обе модели отличаются.
Также лучше выбирать кровати с мягким изголовьем, они значительно облегчат быт, сделают отдых более комфортным и расслабляющим. Не стоит экономить на покупке кровати.
Она должна быть большой и удобной. Даже если придется пожертвовать прикроватными тумбочками, все же стоит выбирать самую большую модель, которую может вместить спальня.
Декор
В маленькой квартире должно быть минимум декора. Открытые полки стеллажа лучше оставлять полупустыми, так как это создаст более легкую атмосферу. Не стоит использовать большое количество мелкого декора. Он будет дробить помещение на части и создавать ощущение захламленности и бардака.
Все же при ремонте двухкомнатной «хрущевки» стоит отдавать предпочтение простым формам, многоуровневому освещению, делать акцент на пространстве, потому что смелые дизайнерские идеи не всегда требуют большого количества декоративных элементов в интерьере. Главный акцент в гостиной лучше сделать на мягкой мебели и текстиле. Из-за дефицита декоративных элементов обивка мебели, напольное покрытие и занавески станут главной составляющей квартиры, поэтому подходите более тщательно к выбору ковра, дивана, штор и других деталей, таких как картины, лампы и вазы.
Стили
Обе комнаты и кухня должны отвечать одному стилю, выдерживаться в одной цветовой гамме и соответствовать временной эпохе. Сочетание разных стилей в маленькой «хрущевке» будет смотреться неуместно и даже нелепо. Ценителям свободы и открытого пространства стоит обратить внимание на современные стили оформления квартиры, они идеально подходят для квартир-студий. При этом акцент ставится на функциональности и свободе пространства.
- Для небольшой квартиры самый подходящий стиль – минимализм. Светлые оттенки, легкие занавески и минимум декора – все это создает эффект расширения пространства и позитивно влияет на состояние человека.
- Скандинавский стиль сочетает в себе особенности минимализма и игру цветов.
В данном стиле также преобладают светлые оттенки в интерьере, но допускается дополнительный декор в виде картин, декоративных предметов и цветов. При этом главный акцент делается на функциональности и комфорте. - Высокотехнологичный хай-тек отлично подойдет для современных и активных молодых людей. По сути, в интерьере воплощается эра высоких технологий. К тому же, такой стиль отлично подойдет и для оформления комнаты подростка. Предпочтение отдается светлым оттенкам и металлическому глянцевому блеску. Исключены объемные люстры и необычные декоративные элементы, но допускается использование картин, постеров и фотографий в тонких металлических рамках. Освещение должно быть хорошо продумано, предпочтение отдается простым геометрическим формам светильников.
- Стиль прованс пришел к нам из южной провинции Франции. Отличительные особенности – флористические мотивы, пастельные и природные оттенки: бежевый, бирюза, оливковый, голубой, зеленый, розовый, лавандовый, желтый и подобные, при этом интерьер не должен быть ярким и насыщенным.
Основной светлый цвет разбавляется естественной природной палитрой. Мебель может быть состаренной, с облупленной краской или сколами на дереве. Дополнить интерьер можно уникальными предметами: сундуком или старым комодом. Шторы и занавески должны быть легкими и полупрозрачными, допускается средняя длина до подоконника. В качестве декора приветствуется большое количество рюшей, кружева, скатертей и керамических статуэток. - В маленькой тесной «хрущевке» можно использовать разные стили, но ни в коем случае нельзя оформлять интерьер в шикарно и праздно украшенном барокко.
Независимо от того, какой стиль интерьера вы выберете, главное, чтобы пространство было эстетичным, функциональным и практичным.
Советы профессионалов
Дизайнеры советуют сочетать в интерьере не более трех цветов.
Один из них обязательно должен быть нейтральным и спокойным, а что касается остальных, то они могут быть смелыми и насыщенными, главное – не слишком кричащими, не перегружающими комнату. Дополнительные цвета уместно использовать в качестве акцентов. Это могут быть яркие картины, текстиль, шторы, обивка мебели или необычная авторская ваза. Главное, чтобы второй цвет был дополнительным, а третий – связующим звеном между первыми двумя.
Определитесь заранее, где будет установлен телевизор. Лучше выбирать плоский экран, и устанавливать его на стену при помощи поворотного кронштейна. Следует сразу позаботиться о том, чтобы провода были спрятаны.
Окно в «хрущевке» обычно имеет небольшие размеры, поэтому лучшим вариантов штор будут легкие полупрозрачные занавески. Таким образом, комната будет наполняться дневным светом и воздухом.
Стоит отказаться от плотных портьер и штор с ламбрекенами, поскольку они могут смотреться гармонично при составлении дизайн-проекта, но на практике сделают обстановку тяжелой, сжатой и пыльной.
Удачный дизайн «хрущевки» не может обойтись без качественного освещения. Главное, чтобы в квартире не оставалось темных углов. В зависимости от стиля в качестве основного потолочного освещения лучше выбирать встроенные светильники по всему периметру потолка, можно сочетать их с потолочной люстрой. Для индивидуального освещения стоит использовать локальные светильники на полу и стенах. Это могут быть всевозможные торшеры, бра и настольные лампы. Грамотно продуманное освещение поможет расставить акценты в квартире, выделить важные зоны и скрыть недостатки.
Варианты в интерьере
Большое зеркало в красивой раме способно преобразить интерьер «хрущевки» до неузнаваемости.
Для зонирования небольшой комнаты отлично подходят шторы-нити.
Данный вариант относится к эконом-классу. Они отлично пропускают воздух и свет, занимают немного места, и в любой момент их можно убрать, сделав помещение еще больше.
Выигрышно смотрится интерьер комнаты, когда цвета мебели, стен и занавесок совпадают.
При работе над обустройством кухни не стоит бояться смелых решений. Гарнитур с округлой формой сочетает в себе удобство, функциональность и стиль. При этом он располагается на площади 8 квадратных метров.
Сочетание бежевого, коричневого и насыщенного синего смотрится гармонично и привлекательной в интерьере кухни-гостиной.
Неплохой способ – расширить площадь кухни за счет прихожей.
Захватывающие фотообои смотрятся невероятно даже в маленькой комнате, создавая потрясающий эффект присутствия.
О том, как сделать перепланировку двухкомнатной «хрущевки», увидите в следующем видео.
Двухкомнатная хрущевка — 80+ фото, планировки, идеи дизайна
Маленькая хрущевка, где негде развернуться – совсем не приговор. Из малогабаритной квартиры можно сделать уютное и функциональное жилье.
Сделать это совсем не трудно, если соблюдать ряд несложных правил и советов.
Блок: 1/9 | Кол-во символов: 216
Источник: https://stroim.guru/interer/luchshie-idei-dizajna-hrushhevki-2-komnaty-43-kv-m.html
Основные характеристики двухкомнатных квартир типа «хрущевки»
Первое применение таких планировок в 4-х или 5-ти этажных домах не отличалось большой квадратурой комнат. Постройки были из кирпича или панельного типа.
Основные параметры:
- Высота потолков достигала отметки 2,5 метра.
- Слабые звукоизоляционные свойства.
- Железобетонные перекрытия.
- Вид крыши – плоский.
- На одном этаже располагалось около 3-4 квартир.
- Некоторые помещения были оборудованы газовыми колонками.
- Первые этажи без балконов и лоджий.
- Основная площадь жилплощади – 30-46 кв.м.
- Спальная комната в среднем площади – от 8.5кв.м.
- Гостиная – от 14кв.м.
- Кухни – от 5 кв.м.
Многие российские семьи в то время впервые обзавелись собственным жильем.
В настоящее время дома такого типа находятся в аварийном состоянии и подлежат сносу, так как их эксплуатация не была рассчитана на длительный срок. Но позже при их строительстве применялись технологии, увеличивающие надежность и долговечность всей конструкции, а также срок их использования до 100-150 лет с учетом проведения планового капитального ремонта, который должен был проводиться через каждые 50 лет.
Некоторые постройки должны были прослужить не больше 30-50 лет и имели статус временного жилья.
Во времена, когда срочно требовалось жилье для большого количества семей, такой вид постройки домов считался самым оптимальным вариантом. Большое число малогабаритных квартир в доме могло вместить много нуждающихся в жилье людей. Архитектурные особенности таких домов не отличались изысканным фасадом, применялась простота и минимализм. Лифт и мусоропровод в пятиэтажных домах того времени не предусматривались.
Панельные и кирпичные многоэтажки возводились в считанные месяцы.
В настоящее время хрущевки требуют переоборудование электропроводок, потому что они не поддерживают современное количество электротехники. Необходимо автоматизирование таких ресурсов, как обогревательное и водно-распределительное оборудование. Теплоизоляция – слабая, что требует дополнительного монтажа внешних панелей для улучшения этих свойств.
Стандартная площадь двухкомнатной хрущевки – около 43-44 кв метров.
Блок: 2/10 | Кол-во символов: 2115
Источник: https://dizainexpert.ru/interer/varianty-planirovki-2-komnatnoj-xrushhevki-po-ploshhadi/
Варианты планировки
Современные дизайнерские приемы, представленные на фото, позволяют создавать стильные и уютные интерьеры. В двушке хрущевок важно учитывать площадь и геометрию. Планировка, названная в народе «книжка» с общей площадью в 42 квадратных метра, имеет план с жилыми смежными комнатами с одной проходной, считается наиболее неудачной. Комнаты при расположении «трамвай» также смежные, но более удобны для разделения.
Планировка квартир хрущевок в девятиэтажном доме в 44 кв метра отличается улучшенным размещением комнат, но минимальные размеры кухни потребуют принять кардинальные меры и составить план для расширения пространства. Проект планировки с симметричным расположением комнат, имеющих площадь 45 кв метров с маленькой кухней в центре называют «бабочка» или «распашонка».
Несмотря на удобную изолированность жилого пространства, представленная схема и проект подтверждают необходимость в увеличении кухни. Продажа малогабаритного жилья с нестандартной двухкомнатной планировкой не единственный выход из ситуации.
Блок: 2/11 | Кол-во символов: 1042
Источник: http://www.sedmoycanal.com/oformlenie/27-dizajn-kvartir-khrushchevok-2-komnaty.html
Перепланировка хрущевки
Обладатели бюджетных двухкомнатных хрущевок все чаще решаются на переделку квартиры, и это правильно: перепланировка позволяет разделить две комнаты, изолировать членов семьи друг от друга, увеличить свободное пространство.
Важные моменты при реконструкции квартиры
Прежде, чем начать перестройку, необходимо обратить внимание на несколько нюансов:
- Перед ремонтом следует составить подробный дизай-проект со всеми расчетами. Это поможет избежать заминок в будущем.
- Все изменения в хрущевке должны быть внесены в технический паспорт квартиры, для этого нужно обратиться в БТИ.
- Перекрытия внутри хрущевки не являются несущими, поэтому согласовать такую переделку будет несложно.
Популярные идеи перепланировки
Практика показывает, что реконструкции хрущевок дают потрясающий результат – при совмещении санузла освобождается место для стиральной машинки; при сносе перегородки между комнатой и кухней появляется пространство для обеденного стола. На приведенных ниже схемах показано еще несколько способов повысить комфорт двухкомнатных хрущевок.
2 комнаты смежные
Смежными называются помещения, имеющие общую стену. Планировка со смежными комнатами и разными входами называется «мини-улучшенка».
Если в квартире есть кладовка, за счет нее можно увеличить площадь кухни: кладовая разбирается, санузел переносится на ее место, а к площади кухни прибавляется 3 кв метра.
На фото увеличенная кухня в двухкомнатной хрущевке, где нашлось место обеденному столу.
Без перегородки между кухней хрущевка превратится в евродвушку, а владелец получит просторную кухню-гостиную. Если кухня газифицирована, проем необходимо оборудовать раздвижной перегородкой. Лоджию можно утеплить и использовать в качестве кабинета.
С проходной комнатой
Такая планировка удобна, если человек живет один. В крошечной кухне хватит места для небольшого столика и всего необходимого для готовки, а одна из комнат станет гостиной с проходом в спальню. Если же в двухкомнатной хрущевке проживает пара или семья с ребенком, квартира нуждается в переделке. За счет возведения дополнительной перегородки увеличивается коридор, межкомнатная дверь переносится на новое место и жильцы получают две изолированные комнаты.
На фото обновленная хрущевка, где проходная комната выступает столовой и гостиной.
За счет реконструкции полового покрытия многие дизайнеры добиваются увеличения высоты помещения до 3 метров. Это позволяет визуально поменять облик помещения, встроить высокие вместительные шкафы и установить кровать-чердак.
Из двушки в трехкомнатную
При обустройстве трешки в малогабаритной хрущевке комнаты значительно уменьшатся в размере. Одна из них может лишиться дневного освещения. Выход в такой ситуации – окна в перегородке, проемы под потолком или фальш-окно.
На фото полностью измененная двухкомнатная хрущевка: спальня расположена за стеной с окном, а коридор переоборудован в гостиную.
Студия в хрущевке
Если снести все стены (за исключением несущих), получится квартира со свободной планировкой. Останется лишь зонировать пространство столом, легкими перегородками или мягкой мебелью.
На фото современная квартира с историей и свободной планировкой.
Блок: 2/7 | Кол-во символов: 3266
Источник: http://trustload.com/dvuxkomnatnaya-xrushhevka-80-foto-planirovki-idei-dizajna/
Методы зонирования пространства
Зонирование комнат в квартирах хрущевок является обязательным условием создания функционального интерьера. Организацию пространства можно выполнить, используя визуальные эффекты, или проект радикальных изменений планировки как на фото. Игра цвета и света широко применяется в качестве зрительного расширения пространства, ненавязчиво, тонко выделяя необходимые области. Предметы мебели также могут выступить выгодным методом зонирования. Барные стойки, книжные полки практично разделят план помещения по функциональному назначению.
Кардинальные изменения в расположении комнат, или при создании единого интерьера на 43 кв метрах потребуют тщательно продумать плавные переходы, несущие перегородки, способы размежевания на этапе проведения ремонта. Двухкомнатная квартира студия премиум класса, в отличие от проходной планировки, выглядит более гармонично с применением арочных проемов, декоративных перегородок.
Элементы оформления, аксессуары, живые растения также используются для визуального разграничения. Размеры, расположение зон напрямую зависят от личных предпочтений и потребностей жильцов, благодаря чему продажа жилья отменяется.
Блок: 5/11 | Кол-во символов: 1178
Источник: http://www.sedmoycanal.com/oformlenie/27-dizajn-kvartir-khrushchevok-2-komnaty.html
Оригинальные стилистические решения
Выбор стилистического решения для двухкомнатной квартиры хрущевок несмотря на сложности оформления довольно велик. Существует огромное количество стилей уместных для нестандартных помещений, площадь которых ограничена. Особой популярностью для стандартной площади 45 кв метров пользуется современный дизайн в стиле модерн, хай-тек, минимализм. Любителям восточных мотивов подойдет японский стиль, почитателям старины и классики – прованс, ретро, или кантри.
Каждый стиль имеет свои особенности и тонкости оформления. Современный дизайн отличается лаконичностью, строгостью линий, отсутствием лишних деталей.
В результате можно получить светлое, просторное помещение. Японский стиль позволит выполнить зонирование при помощи оригинальных аксессуаров с восточными нотками. Уютные варианты оформления в стиле ретро, прованс, создадут по-домашнему теплую атмосферу в планировке «распашонка».
Блок: 4/11 | Кол-во символов: 929
Источник: http://www.sedmoycanal.com/oformlenie/27-dizajn-kvartir-khrushchevok-2-komnaty.html
Дизайн интерьера комнат
Рассмотрим дизайн двухкомнатной хрущевки в деталях, ведь каждое отдельное помещение имеет свои особенности.
Гостиная
Чем больше в квартире проживающих, тем сильнее загружена центральная комната в хрущевке – зал. Чтобы всем членам семьи было не только удобно собираться здесь по вечерам, но и принимать гостей, место для сна должно быть скрыто. Хороший выход – раскладной диван-кровать. В сложенном виде он не занимает много пространства. Напротив него можно повесить телевизор или установить декоративный камин. Иногда проходная комната может совмещать роль столовой, гостиной и спальни.
Кухня
В тесной кухне 6 кв. метров непросто разместить современное оборудование и обеденную зону. Без перепланировки на такой небольшой площади с трудом умещается четырехкомфорочная плита, рабочая поверхность и холодильник.
Чтобы сэкономить драгоценные сантиметры, рекомендуется использовать встроенную технику (она занимает меньше места), двухкомфорочные плиты, мебель-трансформер. Если перенести коммуникации к окну, раковину можно встроить в подоконник. Столовую проще оборудовать в комнате, либо в освободившемся после сноса перегородки проходе между кухней и комнатой.
На фото кухня в двухкомнатной хрущевке, оклеенная фотообоями с перспективой, которые делают помещение визуально глубже.
Спальня
Место для сна и отдыха чаще всего располагается в дальней комнате. В типовых сериях это узкое пространство, напоминающее вагончик, в котором найдется место для двуспальной кровати, шкафа и столика. Оформляется в нейтральных тонах, чтобы не перегружать обстановку.
Для расширения пространства используются зеркала, а для придания интерьеру легкости – мебель на ножках.
Отличный вариант – использование зеркальных шкафчиков по бокам от кровати, которая как бы углубляется в нишу. Для хранения вещей используется полка в изголовье.
Ванная и туалет
В двухкомнатных хрущевках распространены как раздельные, так и совмещенные санузлы. Наилучшим способом сохранить свободное место является установка душевой кабины, но не каждый годов отказываться от полноценной ванны.
Стиральную машину можно установить под раковину или вместо неё. Для сохранения воздуха и света в маленькой ванной стоит использовать минимум разноцветных элементов и открытых полок. Для отделки лучше выбирать белую глянцевую плитку, ее применение дает потрясающий эффект: зрительно стираются границы, увеличивается количество света.
На фото белая ванная в минималистичном стиле, ниша которой оформлена зеркалом.
Детская комната
Небольшие габариты двухкомнатной хрущевки для семьи с ребенком – не повод отказываться от интересного и функционального дизайна: нужно всего лишь применить несколько хитростей, которые позволят вместить в детскую всё необходимое.
Это и изображения на стене, и угловые столы, и двухъярусные кровати. Нельзя пренебрегать и межпотолочным пространством – там могут разместиться шкафчики с вещами.
Прихожая и коридор
Чтобы использовать прихожую в хрущевке для хранения верхней одежды и обуви, рекомендуется выбирать шкаф до потолка: так сохранится пространство и поместится больше вещей. Некоторые двухкомнатные хрущевки оснащены кладовками, которые можно переоборудовать в гардеробные.
Кабинет или рабочее место
Место для работы за компьютером часто требует уединенности. Кабинет можно обустроить на утепленном балконе, в нише, выделить несколько метров у окна или спрятать за шторами.
Блок: 4/7 | Кол-во символов: 3516
Источник: http://trustload.com/dvuxkomnatnaya-xrushhevka-80-foto-planirovki-idei-dizajna/
Планирование
Перепланировать квартиру своими руками несложно. Изначально нужно определиться, какими методами будет достигаться ее переделка: без перепланировки или с полным переносом стен, дверных проемов; с какими секциями будет проводиться работа – обособленными или смежными.
Меняя дизайн 2 комнат хрущевки без перепланировки (ремонт эконом класса), нужно следовать нескольким правилам, при выполнении которых, жилое помещение преобразится:
- Выбросить все ненужные, старые вещи. Каждая лишняя деталь «съедает» пространство.
- Изменить цветовое оформление: должны преобладать светлые, пастельные оттенки. Темные, яркие тона возможны в качестве акцентов (картины, ниши).
- Световое решение. Должно быть как можно больше света, это зрительно увеличивает пространство.
- Обилие зеркал.
- Мебель необходимо расставлять возле стен, она должна быть компактной, не громоздкой. Оптимальное решение использовать мебельные элементы (столы, стулья) из прозрачного пластика.
Полная перепланировка квартиры-хрущевки, в которой 2 комнаты, зависит от нужд, количества проживающих людей. Нужно определиться, сколько обособленных помещений нужно, для каких целей они предназначаются. Для начала необходимо ксерокопировать квартирный план из кадастрового паспорта, на нем сделать наброски будущей перепланировки.
Такое решение поможет четко определиться с назначением жилых секций, размещением мебели, бытовой техники.
Выбирая дизайн для 2 комнатной хрущевки со смежными секциями, где живет семья, нужно учитывать количество ее членов, их предпочтения. Если проживают 2 человек – можно создать студию. Для семьи с маленьким ребенком, оптимальным решением будет объединение кухни, коридора с прилегающим к ним помещением и обособленной детской. Семья, где есть школьники, требует создания 2 обособленных секций, что достигается за счет удлинения коридора, переноса дверных проемов.
Дизайн хрущевки 2 комнаты
Блок: 5/9 | Кол-во символов: 1883
Источник: https://stroim.guru/interer/luchshie-idei-dizajna-hrushhevki-2-komnaty-43-kv-m.html
Как обустроить квартиру?
Чтобы сделать пространство сложнее и интереснее, в двухкомнатной хрущевке стоит использовать многоуровневое освещение. Точечные светильники в потолке выглядят современно и отличаются функциональностью: можно развести проводку так, чтобы регулировать количество света.
Локальное освещение углубляет пространство, а свет, направленный сверху, подчеркивает невысокие потолки.
Расстановка мебели играет не менее важную роль. Обычно комнаты делятся на «приватную» и «общественную» зоны. Даже если в квартире проживает больше двух человек, вполне реально создать для каждого свой уголок. Например, кровать на подиуме, которая выступает местом для хранения и сна, дает ощущение приватности и уединенности. Чтобы сэкономить место в общей зоне, можно использовать угловой диван (он занимает угол, который зачастую остается свободным), а вместо стульев для столовой приобрести табуретки (их легко спрятать под стол).
На фото гостиная с оригинальной люстрой и домашним кинотеатром, украшенным лентой с LED-подсветкой.
Декор и текстиль – то, что придает типичной двухкомнатной хрущевке оригинальности. Плотные шторы добавляют уюта, но сужают пространство и поглощают свет, поэтому, чтобы не перегружать комнату, стоит выбирать однотонную лаконичную ткань. Яркие декоративные детали (картины, фотообои с модными принтами, акцентные стены) смотрятся выигрышно лишь на нейтральном фоне.
Блок: 6/7 | Кол-во символов: 1433
Источник: http://trustload.com/dvuxkomnatnaya-xrushhevka-80-foto-planirovki-idei-dizajna/
Оптимальные варианты меблировки
Правильная меблировка двухкомнатной квартиры хрущевок обеспечит комфорт проживания, сделав план обстановки более функциональным. Цвет, форма мебели должны гармонировать с общей стилистической идеей интерьера, соответствуя цветовому решению отделки. Проверенные советы основываются на основных стилистических приемах:
- минимальное количество элементов мебели;
- применение модульных конструкций;
- легкие, складные варианты;
- стеклянные предметы, или зеркальные вставки;
- компактная угловая и подвесная мебель.
Продажа современных барных стоек, оригинальных ширм и перегородок поможет разделить пространство, не утяжеляя его. Мебель должна быть максимально практичной и функциональной. Дизайн и варианты мебельного оформления как на фото при совмещении жилых помещений с кухней, или проходной план, предусматривают выбор предметов с устойчивой обивкой, или поверхностью, устойчивой к влаге, различным воздействиям. Следует подбирать элементы, учитывая легкость чистки.
Блок: 6/11 | Кол-во символов: 999
Источник: http://www.sedmoycanal.com/oformlenie/27-dizajn-kvartir-khrushchevok-2-komnaty.html
Интерьерные стили
При оформлении интерьера для хрущевки, не нужно использовать обильный декор и многоцветье. Такое решение уменьшить пространство, создаст ощущение хаоса, безвкусицы. Лучшими стилями являются:
- Минимализм, который характеризуется: минимумом декора, светлыми тонами, использованием природных материалов, естественных фактур. «Изюминкой» интерьера гостиной в квартире-хрущевке из 2 комнат минималистического стиля может стать неординарная мебель, оригинальной формы или материала (под мрамор, прозрачный пластик).
- Ультрасовременный хай тек, характеризующийся светлым, пастельным цветовым оформлением, обилием металла, стекла (или его имитацией), арт-объектами, световыми акцентами. Мебель должна быть сдержанных форм, однотонных цветов, используются стеллажи, стеклянные полки, столы из прозрачного пластика и металла.
- Скандинавский стиль. Сдержанное лаконичное направление характеризуется: мебельными элементами простых форм, натуральными расцветками, пастельными тонами холодной группы (синий, белый). Особое внимание уделяется световому решению: используется обильное искусственное, естественное освещение.
Дизайн хрущевки 2 комнаты в розовом цвете
Блок: 7/9 | Кол-во символов: 1165
Источник: https://stroim.guru/interer/luchshie-idei-dizajna-hrushhevki-2-komnaty-43-kv-m.html
Тонкости оформления поверхностей маленьких помещений
Отделка и оформление поверхностей поможет не только украсить интерьер, но и создать желаемый эффект расширения пространства. Контрастное оформление белого потолка с легким глянцем и темного пола станет оптимальным решением для небольшой жилплощади 44 кв метра. Подъем пола, или комбинирование различных материалов органично подчеркнут дизайн и раздел помещения на зоны.
План отделочных работ на поверхности стены лучше выполнять, начиная от самого потолка, что создаст зрительное впечатление высоты плоскости.
В качестве отделочных материалов, чтобы декорировать несущие стены, используются камни, жидкие обои, фактурная штукатурка, лепнина. Продажа современных фактур и цветовых вариаций обоев позволяет легко создать красивое оформление. Несмотря на низкие потолки, нестандартный план помещений, допускается использовать натяжные, гипсокартонные потолочные конструкции. Органичные переходы многоуровневых вариантов помогут в зонировании даже проходной комнаты. Во время ремонта, выполняемого своими руками, особенно важно учитывать практичность и качество отделочных материалов.
Блок: 7/11 | Кол-во символов: 1141
Источник: http://www.sedmoycanal.com/oformlenie/27-dizajn-kvartir-khrushchevok-2-komnaty.html
Расстановка мебели
Чтобы правильно расставить мебель в двухкомнатной хрущевке, нужно учесть особенности плана:
- Студия. Мебель должна расставляться «островками», что позволяет зонировать помещение.
- Дизайн хрущёвки, где 2 смежные комнаты. Данный вариант предполагает размещение мебельных элементов возле стен (особенно важно для проходного помещения). Мебель должна быть негромоздкой, многофункциональной: раскладные диваны, софы, перекатные журнальные столики, кресла мешки, перемещаемые в любое место.
- Две изолированные. Принцип такой же, как у смежных. Маленькая площадь предполагает расстановку мебели возле стен. Оптимально использование раскладных мебельных элементов, столов со стеклянной столешницей. Вместо стенок можно использовать специальные стеллажи, визуально не сокращающие пространство.
- Кухня-гостиная и изолированное помещение. Зона кухни и гостиной в хрущевке предполагает расстановку мебели «островками» для подчеркивания обособленности каждого участка. В изолированной комнате элементы расставляются у стен.
Дизайн хрущевки 2 комнаты
Блок: 8/9 | Кол-во символов: 1052
Источник: https://stroim.guru/interer/luchshie-idei-dizajna-hrushhevki-2-komnaty-43-kv-m.html
Цветовые вариации
Белый цвет, несомненно, выступит идеальной основой для дальнейшего оформления, зрительно расширяя пространство, создавая эффект уюта, чистоты. Привнести нотки тепла и натуральности поможет выполнение стены в цвете, имитирующем фактуру, тон натурального дерева. Особенно актуален выбор для эко интерьеров.
Ограниченный размер кухни хрущевок не позволяет обустроить в ней полноценную обеденную зону. Можно применить контрастное сочетание желтых и фиолетовых красок в гостиной, в области расположения обеденного стола, стульев, выполнив оформление своими руками. Обои с мелким цветочным принтом или географическим рисунком на поверхности стены, положительно повлияет на восприятие пространства, поможет сделать его шире, просторнее.
Эффективно применяется прием оформления одной стены в контрастном или яркую вертикальную полоску фото. Таким образом, можно выделить одну из зон, или выполнить визуальное разграничение пространства. В красках должна превалировать лаконичность, простота. Рекомендуется выбрать три основных интерьерных цвета, после чего использовать для оформления игру их оттенков. Цвет мебели должен органично сочетаться с общим оформлением.
Блок: 8/11 | Кол-во символов: 1179
Источник: http://www.sedmoycanal.com/oformlenie/27-dizajn-kvartir-khrushchevok-2-komnaty.html
Дизайнерские приемы по увеличению пространства
Опытные специалисты по оформлению применяют исключительно проверенные приемы и дизайн расширения пространства. Ограниченная площадь должна обладать максимальной функциональностью, органично совмещая несколько зон. С особой осторожностью следует подойти к видам планировки и количеству разделительных полос в квартирах хрущевках. Слишком большое количество визуальных разграничений способно перегрузить интерьер.
Пропорциональная гармония предметов в комнатах обеспечит правильное восприятие пространства. Рекомендуется отдавать предпочтение, элементам средних размеров, отказавшись от громоздких, тяжелых вариантов. Замена обычных межкомнатных дверей на раздвижные варианты во время эконом ремонта, создание арочных проемов как на фото являются беспроигрышным методом экономии пространства.
Блок: 10/11 | Кол-во символов: 843
Источник: http://www.sedmoycanal.com/oformlenie/27-dizajn-kvartir-khrushchevok-2-komnaty.html
Правильное освещение
Правильное освещение в маленьких пространствах квартир как на фото может выступить не только в роли источника света, но и оригинального элемента декора. Важно учитывать количество природного света, при необходимости дополняя дизайн стандартными рекомендациями. Продажа встроенных светильников позволит выбрать оптимальный вариант для центрального освещения, оформления ниш, арок и перегородок.
Центральная люстра на потолке будет выглядеть неуместно, сделает его ниже, заменой может выступить осветительный прибор, максимально прижатый к поверхности.
В качестве дополнительных источников освещения выступят бра, торшеры, оригинальные настольные светильники. Довольно практична идея, использовать световой поток для органичного разграничения зон, выделения области оформления, части проходной стены, или чтобы подчеркнуть стильный аксессуар. Также выгодно использовать подсветку по всему периметру потолка, наполняя пространство достаточным количеством света для создания комфортной и уютной обстановки.
Блок: 9/11 | Кол-во символов: 1031
Источник: http://www.sedmoycanal.com/oformlenie/27-dizajn-kvartir-khrushchevok-2-komnaty.html
50 вариантов дизайна интерьера двухкомнатных хрущёвок:
Блок: 10/10 | Кол-во символов: 59
Источник: https://dizainexpert.ru/interer/varianty-planirovki-2-komnatnoj-xrushhevki-po-ploshhadi/
Оригинальные элементы декора
Не рекомендуется загромождать интерьер помещений, площадь которых 44 кв метра, множеством мелких предметов. Важно тщательно изучить план, продумать каждый элемент декора, правильно расставить аксессуары. Громоздкие ковры, покрывала, тяжелый текстиль на окнах, коврики, подушки и сувениры создадут эффект захламленности, уменьшив и без того небольшое пространство. Также нельзя допускать отражения мелких предметов в зеркальных поверхностях, что визуально умножит их количество.
Легкие невесомые ткани в минимальном количестве придадут воздушную невесомость пространству. Яркими акцентами могут выступить несколько подушек, салфетки, или полотенца на кухне. Фоторамки, сувениры лучше использовать в минимальном количестве, отдав предпочтение картинам, выполненным в стиле интерьера. В случае наличия достаточно большого количества книг, можно оформить навесные полки. Устранить излишнюю пестроту, поможет обертка книг бумагой спокойных тонов.
Принцип создания комфортной обстановки двухкомнатной квартиры хрущевки – минимум предметов не несущих функциональной нагрузки. Важно продумать вместительные, компактные и эргономичные системы хранения мебели еще на этапе ремонта. Правильное применение приемов поможет создать красивый и уютный дизайн интерьера даже на небольшой площади жилища.
Блок: 11/11 | Кол-во символов: 1320
Источник: http://www.sedmoycanal.com/oformlenie/27-dizajn-kvartir-khrushchevok-2-komnaty.html
Количество использованных доноров: 4
Информация по каждому донору:
- http://trustload.com/dvuxkomnatnaya-xrushhevka-80-foto-planirovki-idei-dizajna/: использовано 4 блоков из 7, кол-во символов 9301 (31%)
- http://www.sedmoycanal.com/oformlenie/27-dizajn-kvartir-khrushchevok-2-komnaty.html: использовано 9 блоков из 11, кол-во символов 9662 (32%)
- https://stroim.guru/interer/luchshie-idei-dizajna-hrushhevki-2-komnaty-43-kv-m.html: использовано 6 блоков из 9, кол-во символов 6097 (20%)
- https://dizainexpert.ru/interer/varianty-planirovki-2-komnatnoj-xrushhevki-po-ploshhadi/: использовано 5 блоков из 10, кол-во символов 4776 (16%)
Планировка двушка хрущевка. Удачная планировка двушки в хрущевке на 43 кв. м. Все рассчитано до миллиметра
Планировка двушка хрущевка. Удачная планировка двушки в хрущевке на 43 кв. м. Все рассчитано до миллиметра
Многие жители городов постсоветского пространства сталкиваются с проблемой обустройства таких квартир, как «хрущевки». Это жилье сложно назвать комфортным. Несуразная планировка, маленькие комнаты и низкие потолки — в такой обстановке сложно чувствовать себя счастливым. Поэтому перед дизайнерами всегда стоит сложная задача, как из хрущевки можно сделать удачную планировку, да еще и с современным дизайном.
Стильный дизайн на небольшой площади
В этом случае русским дизайнерам удалось добиться практически невозможного. Из старой квартиры они сделали удобное и комфортабельное жилье, где будет тепло и уютно каждому члену семьи. Здесь уместилось все необходимое, и даже раздельный санузел! Конечно, больше места в этих апартаментах не стало, но жить в таком современном и стильном месте намного приятнее.
Фото: houzz.ru
Небольшая угловая кухня со всем необходимым
Фото: houzz.ru
Обеденная зона с оригинальными светильниками
Фото: houzz.ru
Над удобным и вместительным диваном повесили оригинальную картину
Фото: houzz.ru
Напротив дивана расположили плазменный телевизор на тумбе
Фото: houzz.ru
Спальня выполнена в теплых оттенках. За основу взят бежевый цвет
Фото: houzz.ru
Невесомый тюль отлично сочетается со шторами горчичного цвета
Фото: houzz.ru
Необычные светильники — «фишка» этого интерьера
В ванной комнате поставили стиральную машинку с вертикальным типом загрузки
Фото: houzz.ru
Небольшая, но удобная раковина и ящики для хранения в тумбе под ней
Фото: houzz.ru
Светлая прихожая оформлена очень удачно
Фото: houzz.ru
Крепкая входная дверь убережет от нежелательных проникновение
Фото: houzz.ru
Сразу у входя полочка для обуви и вешалка для верхней одежды
Фото: houzz.ru
Обязательно необходимо зеркало во весь рост в прихожей
Фото: houzz.ru
Санузел с раковиной и туалетом
Фото: houzz.ru
Планировка квартиры
У нас будет еще много интересного. Ставьте лайки и подписывайтесь на канал, чтобы не пропустить новые выпуски.
Планировка хрущевки 2 комнаты угловая. Планировка 2х комнатной хрущевки
Типовая хрущевка имеет очень маленькую кухню – 5-6 квадратов. Ещё одна особенность – невысокие потолки до 2,7 метров. Двушки без перепланировки зачастую бывают неудобны, особенно, если вторая комната проходная.
Стандартная площадь двухкомнатной хрущевки – около 43-44 кв метров. Дома пятиэтажные. В большинстве своем комнаты смежные, окна выходят на одну сторону (за исключением угловой квартиры с двумя окнами). В качестве достоинств хрущевки можно выделить наличие кладовки и балкона.
Рассмотрим самые распространенные типы планировок подробней.
Книжка
Такая планировка считается самой неудачной: проходная комната с широким дверным проемом играет роль столовой, а в семье с детьми – ещё и спальни. Уединенности в таком пространстве добиться трудно. Чтобы разделить помещения, придется пожертвовать частью комнаты. Без перегородок, на снос которых необходимо получить разрешение, хрущевку можно превратить в просторную студию.
На фото маленькая угловая кухня со встроенным холодильником и столом, вписанным в подоконник.
Трамвайчик
Такое народное название (также употребляется слово «паровозик») планировка получила за расположенные друг за другом комнаты, напоминающие вагоны. Гостиная с балконом является проходной, но переделка решает эту проблему: если отсечь часть комнаты и превратить ее в коридор с двумя входами, в получившейся нише можно организовать систему хранения.
На фото комната в кремовых тонах с акцентной стеной в телевизионной зоне.
На фото проект двухкомнатной хрущевки 44 кв. м.
Распашонка
Вполне удобная планировка, при которой комнаты разделены кухней и прихожей, но такой тип хрущевки встречается нечасто. Также ее называют «бабочкой» благодаря схожести комнат с симметричными крыльями.
На фото крошечная кухня, где глянцевые белые шкафчики-нивидимки занимают всё межпотолочное пространство.
Планировка хрущевки 3 комнаты. Планировки серий домов раннего строительства
Итак, какие же разновидности малометражек существовали в Советском Союзе и существуют по сей день? Первая, и самая популярная серия жилья возводилась под номером 1-464. Все квартиры этой серии оборудованы балконами и небольшими кладовыми, но в подъездах отсутствует лифт и мусоропровод. В таких домах были двухкомнатные, трехкомнатные и однокомнатные квартиры. На площадке четыре двери. Начиная с 1963 года на протяжении четырех лет активно строились малометражки серии 1-335. Здесьуже больше на 4 см, а размер столовой зоны достигает 6,2 квадрата. Даже планировка 1-комнатной хрущевки этой серии предполагает наличие. На площадку выходят четыре двери, максимальный размер — трешки. Четырехкомнатных квартир в типовых домах не было.
Кирпичная хрущевка планировка. Планировка хрущевки – перепланировка и варианты создания смежных комнат (80 фото) – 2019-2019
При приобретении данной недвижимости необходимо уделить пристальное и особое внимание планировке помещения. Однако, главным образом необходимо детально осмотреть спальню. Дело в том, что зачастую проектировка и расположение спальни в таких квартирах были недалеко от входной двери, а это приводит к определенному дискомфорту.
При этом, можно слышать посторонние звуки, которые могут доноситься с лестничной площадки, так как звукоизоляция таких строений практически отсутствует, а это может доставлять некоторые неудобства и дискомфорт.
Поэтому, что бы избежать проблем подобного рода наша статья поможет вам решить их. Также в данной статье можно найти много уникальных и красочных фото планировки хрущевки. Кроме этого здесь можно найти полезные и необходимые практические советы, а также важные рекомендации.
Планировка однокомнатной квартиры в хрущёвке
Безусловно, жилье второй половины прошлого столетия, так называемые хрущевки, как правило, имели маленькие габаритные размеры. При этом, в помещениях подобного типа кухни маленькие и тесные комнаты, смежный санузел, а в дополнение к такому набору еще и весьма не высокие потолки, не более, чем 2,50 метров.
Казалось бы, что недвижимость подобного рода имеет только одни явные недостатки да возможно это так, но несмотря на все вышеперечисленные нюансы, это все можно сделать в достоинства.
При помощи вашей фантазии и воображения можно в корне преобразить старую хрущевку до неузнаваемости.
Итак, для начала рассмотрим вариант с однокомнатной хрущевкой
Для подобного типа квартиры характерна одна важная особенность. Дело в том, что создать одну только спальню не представляется возможным, поэтому комната будет универсальной, и она будет иметь гостиную, прихожую, личный кабинет, спальню. А по мере необходимости можно сделать еще и детскую комнату.
При этом в комнате должно быть все четко и максимально, компактно, удобно расставлено на своих местах, не должно быть ничего лишнего. По возможности установите в комнату кровать-трансформер, это весьма практично и удобно. Этот предмет интерьера способен сэкономить значительную площадь в помещении.
Также рекомендуется наличие в такой комнате универсальных столов с выдвижной конструкцией, которая по мере необходимости может увеличить стол, что очень удобно при приеме гостей более четырех человек. Все это является основной составляющей однокомнатной хрущевки.
В помещениях подобного типа наблюдается нехватка свободного пространства, поэтому очень важно разработать варианты планировки. Многие дизайнеры решают эту задачу при помощи расширения других комнат, например коридора, что позволит незначительно увеличить жилую площадь в помещении.
А вот если очень серьезно заняться балконом, если его хорошо остеклить современными оконными рамами, а так же его хорошо утеплить, то можно получить вполне удобное и комфортное место для отдыха. При желании там можно установить небольшое кресло-кровать, на котором можно хорошо отдохнуть.
Планировка двухкомнатной квартиры в хрущёвках
Владельцам данной недвижимости в определенной степени значительно повезло в размерах, так как в таких квартирах есть комната, которая способна называться спальней. Так же при желании и наличии денег, можно увеличить и площадь балкона.
При этом такое решение необходимо согласовать с соответствующими инстанциями. В конечном итоге балкон может быть переоборудован под личный кабинет или небольшую уютную комнату отдыха.
Немаловажное значение при планировке двухкомнатной хрущёвке имеет расположение кровати и ее окружающее обустройство необходимыми для жизни бытовыми предметами.
Поскольку кровать имеет весьма внушительные габариты, то соответственно она на четверть занимает место в спальне, при этом необходимо еще и обустроить комнату, например, установить шкаф-купе, а также поставить маленькую прикроватную тумбочку. Однако важно следить за тем, что бы в комнате было удобно и свободно перемещаться.
Планировка трёхкомнатной квартиры в хрущёвках
Главная особенность обустройства данной комнаты заключается в том, что такие помещения имеют небольшое малогабаритное строение как кладовка. При желании ее можно с легкостью переделать в красивый и современный шкаф для хранения одежды либо для других предметов, которые необходимо скрыть из вида.
Сложность планировки трехкомнатной квартиры заключается в том, что необходимо четко и правильно оформить все три комнаты только самым необходимым, не перегружая интерьер лишними декоративными элементами и предметами обихода.
Не следует загромождать комнаты большой крупногабаритной мебелью, мебель должна быть компактной и универсальной.
Планировка хрущевки 2 комнаты 44 м. Преображение квартиры 44 кв. м при помощи дизайнерских и стилистических решений
Интерьер жилья небольшой площади трудный, но увлекательный процесс. Чтобы вы смогли самостоятельно сделать ремонт, мы предлагаем дизайн двухкомнатной квартиры 44 кв. м на фото. Вы увидите, что при правильной стилистике, оформлении стен, полов и потолка и расстановке мебели хрущевка преображается в стильный и удобный дом. Дизайнеры подскажут, как оформить крошечный коридор, санузел и как увеличить размер кухни.
Решения для оформления небольших помещений
Ремонт для квартиры 44 кв. м сложнее из-за небольшой жилой площади. Дизайн жилья должен быть без лишней мебели и громоздких шкафов. Перепланировка проводится для увеличения пространства для проживания и расширения жилого помещения, кухни или санузла. Если получилось объединить гостиную с кухней, проводится зонирование.
По мнению дизайнеров, лучшей планировкой хрущевки будет 2-х комнатная студия. Такой проект объединяет в себе одну из жилых комнат, кухню, небольшой коридор. В гостиной-студии с помощью зонирования отделяется место для приготовления пищи и трапезы, отдыха хозяев и гостей квартиры. Спальня остается отдельно, ее можно оформить отлично от общей площади.
Еслив квартиру-студию нет возможности, при оформлении жилья рекомендуется использовать минимум мебели. Откажитесь от дверей в комнаты и кухню или установите складные или створочные подвижные модели. После разбора кладовой расширяется коридор. В этом месте ставят шкаф или переоборудуют комнатку под гардеробную. Балкон или лоджии часто утепляют, выделяют под кабинет.
Оформление кухни
Дизайн кухни хрущевки 44 кв. м осуществляется с помощью небольшого гарнитура и прямоугольного стола со столешницей. Для экономии площади кушать можно на широком подоконнике.
Мебель должна быть с вместительными ящиками и подвесными шкафчиками. Для интерьера подойдут следующие оттенки: бежевый, фиалковый, природные оттенки дерева и зелени.
При перепланировке убирают не несущую стену. Дляустанавливают барную стойку или стеллаж, которые выполняют разделительную функцию. Кухонный гарнитур размещают вдоль стены напротив зоны для еды. Если нужно много бытовой техники, стол переносится в зону гостиной.На кухню-студию устанавливают мощную вытяжку, которая не позволит распределяться лишним запахам от приготовления еды.На фото можно увидеть дизайн в 2-х комнатной квартире:
Интерьер спальни
Спальня в квартире должна быть изолирована от гостиной и кухни. Не стоит заставлять ее лишней мебелью и громоздкими шкафами. Достаточно поставить кровать, прикроватные тумбочки и комод. Для экономии пространства приобретите раскладной диван.
Для оформления спальни используйте пастельные тона. На противоположной от кровати стене: крупные цветы или геометрия на обоях, фотообои с природой или просто контрастный цвет. Над кроватью повесьте картины в эко-стиле.
Для визуального расширения площади можно сделать натяжной потолок.
На фото видно, как правильно оформить маленькую площадь:
Дизайн гостиной
Сложнее всего в небольшой двушке оформить гостиную. Для современного дизайна используют яркие цвета и оттенки. Выбирают полезную мебель, устанавливают встроенные шкафы на всю стену, навесные или напольные стеллажи, полки, небольшие раскладные диванчики и софы.
Для визуального расширения площади гостиной одну стену обклеивают яркими обоями с геометрическими узорами, цветами или фигурами животных. Окна вдоль стены занавешивают легкими прозрачными занавесками, которые создадут дополнительный простор. Шкаф устанавливают с зеркальной поверхностью.
Фото дизайна гостиного помещения в двухкомнатной квартире 44 кв. м:
Зонирование комнаты
Гостиная, которая объединена с кухней, должна содержать несколько зон: обеденная, рабочая и место для отдыха. Зонирование проводят диваном, стеклянной или тканевой перегородкой, барной стойкой.
Стол лучше использовать стеклянный, стулья или табуретки должны быть светлые. При помощи подиума, разного напольного покрытия можно визуально разделить пространство, выделить место под спальню.
В оформлении отдельная комната или детская прячется за дверью под цвет стены.
На фото можно увидеть, как лучше разграничить на функциональные зоны небольшое помещение:
Планировка туалета и ванной
Санузел в хрущевке 44 кв. м имеет небольшую площадь, поэтому часто появляется проблема, как поставить стиральную машину, шкафчик для бытовой химии, косметики. Расширить пространство можно за счет коридора с помощью перепланировки. Также некоторые дизайнеры предлагают установить душ.
Цвет стен не должен быть темным. Лучше комбинировать 2-3 цвета и использовать вертикальные полосы. Визуально расширит пространство большое зеркало без рамы, светлый навесной шкафчик.
Проекты планировки хрущевки площадью 43 кв м
Хрущевка – одно из первых зданий массовой застройки с небольшими квартирами, недостаточной шумоизоляцией и чрезмерно низкими потолками. Пик активности их возведения этих построек пришелся на 60-80 гг. прошлого столетия. Ввиду скоротечности строительства жилье в указанных домах часто требует выполнения такого мероприятия, как планировка в хрущевке 43 кв метра.
Особенности хрущевок
Такие квартиры без проблем можно выделить среди остального жилфонда. Наряду с широкими квадратными двустворчатыми фрамугами и небольшим кухонным окном с торца дома, хрущевки 43 кв.м. имеют следующие особенности:
- наличие в своем составе проходной жилплощади;
- маленькие габариты кухни – от 4 до 6 кв.метров;
- совмещенные ванну и туалет;
- присутствие кладовки и балконной конструкции.
Проводя общий анализ коммуникационных систем, необходимо отметить в таких домах наличие центрального отопления и отсутствие лифтов и мусоропроводов. Количество этажей в хрущевках варьируется от 3 до 9 ярусов.
Идеи планировок
Несмотря на перечисленные особенности, планировка квартиры такого типа с легкостью изменяется вне зависимости от первоначального размещения. Это реализуется посредством сноса или перемещения стен с учетом согласования таких нововведений с соответствующими органами. Перегородки в хрущевках не являются несущими.
Идея № 1
Одним из вариантов планировки является расширение кухни. Площадь такого помещения с легкостью может быть увеличена за счет совмещения с гостиной.
В результате можно получить из классической квадратуры кухонной пространства зданий типа «хрущевка» в 5 кв.м. 23 квадрата студийного помещения. При этом студия включит в свой состав свободную гостиную комнату с зоной для приготовления пищи.
Планировка такой еврооднушки «выделит» дополнительную площадь (метр или более) под мебельный гарнитур за счет сноса лишней стены.
Идея № 2
Малогабаритная квартира-хрущевка 43 кв.метра без особых усилий перестраивается в студию. Это реализуется посредством демонтажа всех внутренних стен. Изоляцию при таком варианте планировки целесообразно оставить только для санузла.
Полученное просторное помещение можно разделить на зоны с индивидуальным функционалом. Зонирование осуществляется метр за метром при помощи установки перегородок или выделения цветом (белый, синий, зеленый и пр., кроме красного).
С использованием таких приемов в первую очередь следует разделить зоны отдыха и сна. Таковые, играя цветовой гаммой стен и пола, зрительно увеличивают пространство посредством визуального обмана. В этом варианте часто для нижнего оформления помещения можно использовать на кухне плитку, а в спальне и гостиной – ламинат.
Представленный вариант планировки отлично впишется в быт молодоженов без детей. При наличии последних целесообразно рассмотреть идею формирования жилого пространства в квартирах домов типа хрущевка с изолированной детской комнатой.
Идея № 3
Очередная планировка – перенос перегородок с сохранением изоляции 2 комнат. Одним из примеров реализации такой идеи является расширение кухонного пространства с классических 5 кв.м. до 15. Максимальное значение полезных квадратов может варьироваться в зависимости от особенностей конструкции жилья.
Создать такое помещение в хрущевке 43 кв.м. можно посредством сноса имеющейся стены и возведения новой перегородки в запланированном месте. Рост площади достигается за счет смежной комнаты.
Идея № 4
Еще один способ выполнить планировку в хрущевке – объединение проходной комнаты и кухни с разделением оставшегося самого большого помещения. Такой вариант оптимален для семей с одним ребенком, часто принимающих у себя гостей.
Визитеров в такой квартире можно легко разместить в свободной гостиной с установленным обеденным столом.
Зонирование пространства
Несмотря на применяемые способы планировки в зданиях типа хрущевка, разбивка на зоны просто необходима. При использовании такого приема в совмещенном кухонном и гостином помещении следует первоначально отделить область (метр или более в зависимости от личных предпочтений) для приготовления пищи. В случае нехватки места по ширине стены для размещения кухонного гарнитура или техники целесообразно рассмотреть вариант установки оставшихся элементов вдоль перпендикулярно расположенной перегородки. Для логичного завершения в таком случае остается только встроить стойку.
Фиксация такого элемента позволит зрительно разбить общую площадь на функциональные зоны.
Экономия места на кухне также обуславливает использование столешницы вместо обеденного стола.
Разграничить области в помещении можно и путем установки мягкой мебели. Для этого можно разместить диван тыльной стороной к перегородке, вдоль которой расположена столешница.
Также нельзя не рассматривать вариант монтажа разграничительной металлической, стеклянной или деревянной стенки. Можно и прибегнуть к цветовому или фактурному выделению.
Приведенные оригинальные варианты формирования полезной квадратуры помогут сделать так, чтобы квартира-хрущевка превратилась в современное и удобное жилье.
Агентство и модернизация в советском доме на JSTOR
АбстрактныйLes nouvelles zone urbaines en préfabriqué, qui ont fait leur apparition à la fin des années 1950 au center des villes soviétiques et à leur périphérie par suite d’une campagne de Construction Интенсивное строительство домов в 1957 г. poststalinien d’améliorer le niveau de vie du plus grand nombre. L’ère khrouchtchévienne a fait fortement progresser, non sans à-coups, la vie quotidienne du citoyen ordinaire en jetant les базисы современного и общественного общества.Cette période a également connu des tentatives de reorientations stylistiques radicales dans l’aménagement des espaces homestique et urbain en faveur d’une d’une nouvelle esthétique du modernisme socialiste. Cependant, dans la mesure où, pour un определенных nombre de raisons, cechangement s’avéra inégalement, le nouveau style ne fut pas admogène de façon homogène par l’ensemble des foyers. L’article aborde les вопросы родственников au pouvoir politique et à celui des créateurs dans l’aménagement du nouvel environment.Entre toutes les party impliquées, l’auteur a choisi de polariser son Внимание, deux groupes d’acteurs, et l’influence qu’ils ont pu exercer dans l’élaboration et l’adption de ce change. D’une part, il s’agit des экспертов de l’esthétique ou des Professionnels du goût qui, tout en veillant à protéger les intérêts de leur corporation, agissaient au nom de l’État-parti et de son projet de construire une société Communiste moderne et établissaient les normes de la vie et de l’esthétique modernes et, d’autre part, des femmes au foyer qui, a titre staff et amateur, s’investissaient dans l’aménagement de leur nouveau type d’habitat, l ‘апартаменты индивидуальные.La modernization de l’environnement quotidien soviétique, initiée par des spécialistes, soulève certes la question importante de la mise en place, mais plus encore, celle de la négociation entre les nombreux acteurs dont les позиции divergeaient et étaient fonction place, soit de leur -а-vis de l’autorité de l’État soit de leur rapport à la concrétisation matérielle de ce nouvel aménagement de l’espace Domestique. /// Новые городские районы сборного жилья, которые быстро росли в советских городах и вокруг них в конце 1950-х годов в результате интенсивного массового строительства жилья, начатого в 1957 году, ярко продемонстрировали провозглашенную постсталинским режимом приверженность повышению стандартов для многих и не только немногие.Действительно, с точки зрения повседневного опыта обычных людей, хрущевская эпоха представляла собой большой, но неравномерный шаг вперед в создании основы современного быта и основ общества массового потребления. Он также видел попытки радикальной стилистической переориентации в домашнем и городском пространстве в сторону новой эстетики социалистического модернизма. Однако изменение стиля не вошло в дома людей плавно и повсеместно. По ряду причин он был принят и принят неравномерно.В статье рассматриваются вопросы авторитета и авторства нового домашнего интерьера. С одной стороны, он обслуживает агентство, состоящее из экспертов по эстетике или профессионалов вкуса, которые, действуя от имени партии-государства и ее проекта построения современного коммунистического общества, одновременно служа своим собственным групповым интересам, устанавливают нормы поведения. современная жизнь и современные эстетические режимы; и, с другой стороны, индивидуальные домохозяйки-любители поселяются в своих новых одноквартирных домах. Модернизация советской повседневной среды, инициированная специалистами сверху, поднимает важные вопросы об агентстве или, скорее, о переговорах между различными ведомствами, по-разному позиционируемыми по отношению к власти государства и материальной структуре дома.
Информация о журналеМеждународный междисциплинарный трехъязычный (французский, русский и английский) журнал, посвященный истории русского мира, Cahiers du Monde russe стремится освещать политическую, социальную, экономическую и культурную историю Российской империи с момента ее зарождения в 1917 году. через USSE и, наконец, в различные штаты в своих выпусках.
Информация об издателе МиссияÉditions de la ‘EHESS заключается в повышении осведомленности и распространении требовательных и инновационных исследований среди научного сообщества и любознательной аудитории социальных наук.В соответствии с экспериментальной традицией École des Hautes Études en Sciences Sociales, они участвуют в исследовании новых областей знаний и работают над интеллектуальным проектом социальных наук множеством способов, областей и периодов, которые организуют эти дисциплины. . Les Éditions de l’EHESS ont pour mission de faire connaître et diffuser, auprès de la communauté scientifique et d’un public curieux des Sciences sociales, des recherches exigeantes et novatrices. В соответствии с экспериментальной традицией Школы высоких исследований в области социальных наук, участие в исследовании новых полей знаний и трудностей в рамках интеллектуального проекта социальных наук, во множестве различных образовательных и социальных наук. спокойные организационные дисциплины.
фото дизайнерских и декоративных идей. Современный дизайн небольшой двухкомнатной квартиры
Интерьер двухкомнатной квартиры может быть таким, каким Вы мечтали — модным и современным, а для этого не нужно тратить огромные деньги на ремонт!
В этой статье мы покажем вам красивые дизайнерские идеи для двухкомнатной квартиры, которые достаточно легко реализовать даже в рамках небольшого бюджета.
Дизайнерские идеи однокомнатной квартиры
Ниже мы расскажем о самых интересных и стильных идеях дизайна двухкомнатной квартиры, которые органично вписываются в дизайн небольших комнат и, в принципе, небольших пространств.
Светлые тона для внутренней отделки
Светлые тона на основе белого, бежевого или бледно-серого оттенка помогут создать ощущение простора и комфорта. То есть такая схема помогает избежать атмосферы замкнутого пространства.
Кухня-гостиная открытого плана
Перепланировка двухкомнатной квартиры — очень удачное решение для небольшой площади. Объединение кухни и гостиной может быть особенно полезным, так что вы получите современный образ жизни по цене сноса одной стены!
Стеклянные перегородки между кухней и гостиной
Стеклянные перегородки помогут разделить кухню и гостиную на открытой планировке, если, например, вы хотите защитить мягкую мебель от кулинарных запахов.Кстати, для этого можно использовать стеклянные дверцы-бегунки.
Визуальное зонирование
Варианты перепланировки и зонирования в двушке
Перепланировка двухкомнатной квартиры сулит вам довольно большие денежные затраты, но в итоге вы получаете современную квартиру на уровне дорогих европейских жилых комплексов . Если типовая планировка не соответствует вашим потребностям, следует обратиться за помощью к дизайнерам интерьера.
Типовая планировка двухкомнатной квартиры
Типовая планировка двухкомнатной квартиры современного типа выглядит так, как показано на фото выше.В нем есть кухня, гостиная и отдельная спальня с гардеробной …
Объединение гостиной и коридора
Кстати, вы можете объединить гостиную и прихожую (коридор), тогда ваша квартира станет больше просторный и привлекательный. На приведенном выше плане к зоне открытой планировки добавлена кухня довольно скромного размера. Благодаря такому приему в холл поступало естественное освещение из кухни.
Перенос кухни в гостиную и расстановку шкафа на кухне
Здесь кухню перенесли из центра квартиры в правый нижний угол, в гостиную, освободив место под кабинет в спальне. .Вход в спальню теперь из кабинета, а на его старом месте два небольших встроенных шкафа.
Перенос кухни в гостиную, кухня на участке — детская
В центре квартиры, где раньше была кухня, теперь расположена детская. В квартире с такой планировкой легко разместится семья из трех-четырех человек. Кухню перенесли в гостиную, в угол комнаты, подальше от окна.
Перенос гостиной в коридор или коридор
За счет уменьшения гостиной (центральная комната на плане выше) теперь в прихожей располагается новая гостиная . Таким образом, двухкомнатная квартира превратилась в трехкомнатную с отдельной кухней.
Объединение кухни и гостиной
Простое сочетание кухни и гостиной идеально подходит для двух человек в двухкомнатной квартире. Также плюсом будет организация встроенного шкафа-купе.
Объединение кухни и гостиной с отдельной детской комнатой
В данном случае двухкомнатная квартира рассчитана на четверых. В детской — двухъярусная кровать, а в новой кухне-гостиной за перегородкой — еще одна двуспальная кровать.
Перенос кухни в гостиную, две раздельные детские комнаты
Еще один вариант с переносом кухни в гостиную рассчитан на большую семью. Здесь с комфортом разместятся от 4 до 6 человек.
В гостиной на раскладном диване спальное место для родителей, в одной детской на кухонном месте и во второй отдельной спальне с выходом на балкон двухъярусная кровать. Таким образом, есть всего три комнаты, в которых можно спать. Будет удобно для семьи с 2-4 детьми или семьи с 1-2 детьми и еще одним старшим родственником.
Перенос кухни в коридор, на ее место — в детскую.
Если ваш коридор достаточно широкий, вы также можете организовать в нем кухню.Тогда гостиная останется гостиной, а вместо спальни и кухни вы разместите спальню и детскую комнату!
Планировка трехкомнатной квартиры с двумя спальнями
В данном случае гостиная была разделена на две зоны — гостиную и дополнительную спальню. Кухня осталась прежней, но стала частью открытой планировки. Это возможно, если в гостиной изначально было два окна, либо вам достаточно одного оконного блока кухни на всю кухню-гостиную.
Перепланировка двухкомнатной квартиры 48 кв.м
А это интересная перепланировка двухкомнатной квартиры, рассчитанная на 2-4 человека. Есть спальня, еще одна небольшая спальня и кухня-гостиная. Площадь квартиры 48 квадратных метров, а по сути это уже трехкомнатная квартира.
Перепланировка двухкомнатной квартиры 56 кв.м
Вот еще одна удачная планировка двухкомнатной квартиры.В углу гостиной есть место для кухни в нише, гостиная остается на месте, значит, у вас остается две отдельные комнаты на две спальни!
Перепланировка двухкомнатной квартиры 42 кв.м
Изначально двухкомнатная квартира состоит из двух жилых комнат (одна большая, другая маленькая), кухни, прихожей, санузла и лоджии или балкона. . Если вы хотите свести перепланировку к минимуму, обратитесь к варианту двухкомнатной квартиры как на фото выше.
Здесь вход на кухню теперь осуществляется из гостиной, в коридоре два гардеробы — для прихожей и для спальни, а гостиная расширена за счет прихожей. Это минимальный набор преобразований для бюджетного ремонта.
Дизайн кухни в двухкомнатной квартире
Кухня в двухкомнатной квартире может быть отдельной или открытой, небольшой или средней площади, с зоной гостиной, расположенной как на прежнем месте, так и в совершенно другом комната — коридор, гостиная, лоджия или даже спальня!
Кухня открытого плана: плюсы и минусы
Кухня открытого плана позволит воплотить в жизнь мечту практически каждого современного человека — общественная зона с островом, большим диваном, двумя окнами и красивым дизайном интерьера.Если это важно для вас, смело используйте открытую планировку в своем проекте.
Обратной стороной является то, что гостиная перестала быть отдельной комнатой. А если вы захотите использовать его в качестве кровати, этот вариант может вам не понравиться, особенно если в вашей семье много людей.
Остров может быть представлен как простая обеденная группа, или как остров с барной стойкой и столешницей, или даже может содержать множество функциональных элементов — плиту, раковину, встроенную стиральную и посудомоечную машины и многое другое.Кстати, в последнем варианте водосток нужно будет проложить в полу при ремонте.
Узкий и длинный дизайн кухни
Специально для вас мы нашли вариант потрясающего дизайна маленькой, узкой и длинной кухни, который часто можно встретить в двухкомнатной квартире. Как видите, красивой может быть и закрытая, и приватная небольшая комната.
Минималистичная белая кухня
Пожалуй, самый модный вариант дизайна современной кухни — это гарнитур в стиле минимализм белого цвета с островком.Если сосредоточиться на этой идее, у вас обязательно получится ультрасовременный интерьер.
А так в двухкомнатной квартире можно оформить комнату площадью около 25 квадратных метров в скандинавском стиле, где будет еще одна отдельная спальня или детская.
Дизайн гостиной в двухкомнатной квартире
Гостиная в двухкомнатной квартире может быть как местом приема гостей, так и спальней, кухней, столовой, детской, игровой. или библиотека!
Самые красивые и практичные идеи дизайна гостиной, которые мы собрали для вас ниже.
Функциональность дизайна гостиной
Стильный дизайн гостиной — идеальное решение для городской жизни. В этом варианте оформления можно использовать интересные цвета и оттенки, фактуры, рельефы, эксклюзивные дизайнерские идеи и текстиль, чтобы сделать комнату более оригинальной.
Интерьер гостиной в скандинавском стиле с кроватью
Гостиная с кроватью часто оформляется в скандинавском стиле, так как именно в нем такое планировочное решение по расстановке мебели является традиционным, а значит полностью органичным.
Гостиная с лоджией и панорамными окнами
Еще один вариант гостиной в скандинавском стиле порадовал модным расположением кресел и наличием панорамного остекления.
Гостиная, совмещенная со спальней
Отличный вариант для гостиной со спальней и большим количеством мест для хранения вещей, которые вы видите на фото выше.
Обратите внимание на интересное функциональное решение с кроватью, которая спрятана в нише (на фото она выложена), освобождая достаточно большое пространство.
Также стоит отметить использование нескольких для визуального разделения зон спальни и гостиной: стеллажа в качестве перегородки и материалов для отделки стен; в гостиной — штукатурка, в зоне спальни — обои.
Дизайн гостиной в скандинавском стиле с кроватью в старинном доме. Есть выход на балкон и одно маленькое окошко, но интерьер по-прежнему выглядит модно и стильно!
Такое потрясающее освещение для акцентной стены в гостиной преобразит любую, даже самую маленькую комнату.Но все же осторожно используйте этот дизайнерский прием, например, только на одной стене.
Еще один вариант фокального дизайна — акцентная стена «под кирпич», которая может стать вашим лучшим решением при оформлении гостиной. Такая идея подойдет к стилям: скандинавскому и минимализму.
Детская в гостиной с диваном
В гостиной можно устроить детскую. При входе в комнату будет шкаф-купе, у окна рабочее место, в центре раскладной диван с телевизором.Используйте больше текстиля для колористических акцентов.
Столовая в американском стиле часто организует обеденную группу. При этом ваша кухня освобождается от стола и стульев, что делает ее более просторной и уютной.
Гостиная с небольшой кухней
Отличный вариант гостиной в современном стиле, на этот раз с кухней. Здесь прихожая, кухня и гостиная — это одно помещение, что позволяет сэкономить место для одной или даже двух спален в двухкомнатной квартире!
Дизайн спальни и детской в двухкомнатной квартире
Ниже мы рассмотрим удачные идеи дизайна маленькой спальни и детской комнаты в вашей квартире.А также покажем варианты расположения спальни в гостиной зоне с интересным планировочным решением.
Встроенный шкаф в белом глянцевом цвете
Если есть универсальное решение для любой маленькой спальни или детской, то это встроенный шкаф от пола до потолка с фасадами светлых оттенков или даже глянцевыми. Благодаря множеству встроенных механизмов и ящиков он решит все ваши проблемы с хранением раз и навсегда.
Акцентная стена за изголовьем кровати в спальне
Акцентная стена может быть реализована за счет ярких обоев, штукатурки интересной фактуры (в том числе венецианской), а также использования декоративных панелей под дерево, декоративной кирпичной кладки.
Скандинавский стиль — безусловный фаворит для украшения маленькой детской. Помещение остается светлым, но неизменно получается функциональным и красивым. Кстати, скандинавский стиль подходит как девочкам, так и мальчикам.
Изголовье с текстильными панелями и нишами из гипсокартона
Такое изголовье можно заказать у мастеров, работающих с гипсокартоном. Перегородка занимает 10 сантиметров от дальней стены, но при этом добавляет ниши, подсветку, мягкие полочки и удобные розетки.
Спальня в гостиной
Расположение спального места в гостиной — зачастую неплохое решение! А для создания более приватной атмосферы можно использовать зонирующие перегородки из стекла, ткани или гипсокартона.
Детская комната в гостиной
Есть много причин для размещения детской в гостиной — например, вы хотите выделить отдельную спальню для своего супруга. Так, детскую можно разместить у окна, в самом солнечном месте, а также частично захватить пристроенную лоджию.
Спальня за перегородкой из раздвижных дверей выглядит очень современно и незаметна, когда вы принимаете гостей, когда закрываете двери.
Спальня в гостиной: диван + кровать
А так можно расставить мебель в гостиной, где вы собираетесь поставить двуспальную кровать. Вместо дивана — диван (шапка), который очень удобен и по стилю подходит к кровати.
Для скандинавского стиля планировка гостиной и кровати, и дивана является традиционным решением.А гармония обычно достигается с помощью идентичного по цвету и стилю текстиля.
Дизайн ванной и туалета
Рассмотрим идеи, цвета и решения, а также варианты отделки ванной комнаты!
Ванная комната в стиле минимализм
Минимализм как стиль идеален для оформления небольшой ванной комнаты. Его лаконичные линии и четкая геометрическая форма позволяют сделать компактное пространство аккуратным и стильным. Сдержанные и контрастные цвета в этом случае наиболее предпочтительны.
Встроенная стиральная машина
В этой ванной хозяева отказались от ванны в пользу красивой душевой кабины со сливом в полу. При этом стиральная машина встроена в шкафчик возле мойки, над ней удобная каменная столешница для полотенец и аксессуаров.
Эта модная ванная комната в скандинавском стиле впечатляет акцентной стеной из керамического паркета, деревянным пьедесталом и акцентной мозаикой лазурного цвета в зоне зеркала, подобранной в тон ее цвету.Выглядит потрясающе!
Серый и белый цвета для оформления ванной комнаты
Если ваша ванная комната меньше, чем вы хотели бы, бело-серая цветовая гамма может вам помочь. Кстати, при таком подходе к дизайну вам будет невероятно легко подобрать декор и аксессуары.
Встроенная стиральная машина в шкафу в ванной
Еще один вариант для удобной встроенной стиральной машины в ванной — на этот раз в большом туалете — также предоставляет много места для хранения текстиля, бытовой химии и аксессуары.
Минималистичная ванная комната в сером цвете
Серый, пепельный и каменный цвета в дизайне ванной комнаты — безусловный тренд года. Вы получаете модную расцветку, идеально подходящую для глянцевой керамики, и возможность использовать керамогранит (самый модный — под мрамор). И все это легко и шикарно и даже без участия дизайнера.
Санузел 2 квадратных метра с душевой кабиной
А так можно расположить унитаз, душ и раковину на площади 2 квадратных метра.метр, который обычно предоставляется только в унитаз. Если выбора нет, этот вариант самый рациональный!
Интерьер маленького туалета
Для украшения интерьера маленькой туалетной комнаты отлично подойдет эффектный тандем яркой плитки с орнаментом для пола и однотонный свет для стен.
А для более роскошной отделки необходимы декоративные панели под дерево и керамогранит под мрамор, которые идеально дополняют друг друга!
Стильный дизайн интерьера туалета с подвесным унитазом
Если позволяет бюджет, подумайте о подвесном унитазе со встроенным сливом и дорогой керамогранитной плиткой под мрамор.Или даже плиты из агата, мрамора, оникса или аметиста для акцентного блока!
Фотообои также популярны в современном дизайне ванных комнат. Их чаще всего выбирают для украшения стены за унитазом или дверью. Обычно здесь используются морские или другие природные ландшафты.
Самый востребованный вариант квартир на рынке недвижимости — двухкомнатные, они оптимальны по площади и цене по сравнению с близкими однокомнатными и слишком дорогими трехкомнатными.Планировка и дизайн двухкомнатной квартиры позволяет легко организовать все необходимые зоны и воплотить в жизнь любую фантазию, связанную с новым интерьером. Благо современный рынок предлагает большое разнообразие стилей, и дизайн типовой однокомнатной квартиры не такой дорогой и сложный, как может показаться на первый взгляд.
В интерьере нет мелочей и незначительных деталей, поэтому, независимо от размеров квартиры, любое решение нужно принимать внимательно.Дизайн-проект двухкомнатной квартиры требует внимания на всех этапах работы: и при перепланировке, и при разработке концепции, и при воплощении идеи в жизнь.
Большинство старых планировок не соответствуют современным требованиям комфорта. Современный дизайн двухкомнатной квартиры должен быть комфортным и функциональным во всех комнатах и помещениях. Поэтому любой ремонт начинается с того, что дизайн интерьера двухкомнатной квартиры описывается на бумаге или рисуется на компьютере в специальной программе.
А теперь поговорим о минусах квартир на вторичном рынке жилья :
- Замкнутый вытянутый коридор, неудобный для расстановки мебели и рационального использования его площади;
- Санузел совмещенный, снижающий общий уровень комфорта;
- Маленькая кухня, не позволяющая разместить всю необходимую бытовую технику и мебель;
Вариант решения этой проблемы — объединение кухни с жилой зоной
- Низкие потолки в квартире;
- Малая общая площадь старых однокомнатных квартир.
В случае стандартных макетов возможности дизайнера ограничены, так как часто возникают «слепые» зоны, которые сложно использовать рационально. Поэтому в перепланировке обычно нуждаются именно однокомнатные квартиры.
Чтобы воплотить в жизнь дизайн двухкомнатной квартиры, как на фото ниже, следует тщательно продумать план этажа.
Проанализированы достоинства и недостатки доступной площади. Основные моменты, на которые следует обратить внимание :
- Количество домохозяйств. У каждого должно быть личное обособленное пространство, которое определяется либо отдельной зоной, либо предметами интерьера. Обустройство кухни и обеденной зоны зависит также от количества проживающих в квартире.
- Стиль интерьера квартиры. Он строго индивидуален. Однако сегодня общая тенденция смещается в сторону минимализма, функциональности и минимализма в декоре.
- Недостатки планировки. Помните, новая перепланировка должна устранять, а не усугублять эти недостатки.
- Технические параметры участка. Это и жизнь дома, и положение несущих стен, расположение дверных и оконных проемов.
Учтя все нюансы и проведя работы, связанные с перепланировкой квартиры, можно приступать к оформлению и декорированию нового пространства.
Квартиры сталинского типа
Эти апартаменты отличаются полноразмерными комнатами и внушительной высотой потолков. Дизайн такой двухкомнатной квартиры, площадью 60 или 70 кв м, должен учитывать необходимость установки двери в дверном проеме между кухней и гостиной.
Квартиры хрущевки
Полная противоположность «сталинскому» с небольшими помещениями, скудной кухней, низкими потолками и проходной комнатой, которую сложно использовать как гостиную.Здесь дизайнеру придется потрудиться. Обычно 50 кв м — это максимальная площадь такой квартиры, поэтому качественный и функциональный дизайн двухкомнатной квартиры в хрущевке, как на фото ниже, встречается очень редко.
Если площадь очень мала, возможно, придется объединить кухню с соседней комнатой, чтобы увеличить обеденную зону. В этом случае на помощь приходит дизайн двухкомнатной квартиры-студии.
Квартиры брежневского типа
Немного улучшенный вариант «хрущевки»: кухня просторнее, чуть больше комнаты и отдельная ванна и туалет.Ремонтный дизайн двухкомнатной квартиры этого типа также будет нести функцию работы над ошибками планировки.
На заметку: Часто брежневки бывают панельного типа. В этом случае дизайн панельной двухкомнатной квартиры должен исключать перенос имеющихся дверей или создание новых.
Современные дома
И, наконец, мы перешли к самому приятному моменту программы. Планировки в современных домах продуманы и удобны.Например, дизайн двухкомнатной квартиры п44т не нуждается в перепланировке — в этих домах применяются самые удачные инженерные решения. Здесь двухкомнатная квартира требует только качественного интерьера, как на этих фото.
Если в планах дизайна двухкомнатной квартиры майки, обратите внимание на разницу освещения в комнатах, так как они будут выходить в разные стороны дома.
Важно: В дизайне двухкомнатной квартиры для семьи с ребенком требуется отдельная зона для ребенка с учетом его роста и развития.
В нашей галерее представлена подборка лучших интерьеров двухкомнатных квартир 2017 и 2017 годов. На фото вы найдете как дизайн двухкомнатной квартиры в новостройке, так и достойные образцы ремонта в хрущевке и сталинском. Наслаждайтесь просмотром!
Массовое строительство хрущевок началось в 50-х годах и продолжалось до начала 90-х годов. Такое жилье было не комфортным и имело множество недостатков: неудобную планировку, небольшие размеры помещений, низкие потолки, тонкие перегородки.
Общая площадь двухкомнатной квартиры 40-43 м 2. Отсутствие свободного пространства накладывает некоторые ограничения на дизайн интерьера. Как быть хозяевам таких квартир? Современные дизайнеры нашли множество решений, которые придадут хрущевке оригинальный, гармоничный и экстравагантный вид.
Ремонт двухкомнатной квартиры. С чего начать?
Для того, чтобы приступить к ремонту, необходимо правильно спланировать объем работ. Для этого составляется план проекта, в котором отображаются все желаемые изменения.После чего необходимо будет рассчитать финансовую сторону, в этом вопросе необходимо учитывать не только плановые затраты, но и внеплановые. Как правило, после демонтажа часто появляются те недостатки, о которых никто даже не подозревал, соответственно, что приводит к вложению дополнительных средств. К такому повороту лучше подготовиться заранее, так как очень важно не только начать ремонт, но и вовремя его закончить.
Ремонт двухкомнатной квартиры хрущевки — процесс долгий и хлопотный, но при правильном подходе конечный результат поразит своей оригинальностью и изысканностью.
Для улучшения жилья в хрущевке, скорее всего, потребуется перепланировка. Его основная задача — максимальное расширение пространства. Глухие межкомнатные перегородки можно заменить арочными декоративными конструкциями.
Если же наоборот хочется создать больше (этот вопрос особенно актуален в квартирах с гардеробной) возводится стена, оставшееся пространство можно использовать под кладовую или гардеробную. Такой ход поможет избавиться от громоздких шкафов.
Конечно, эти методы возможны только при глобальных изменениях капитала.Ведя двухкомнатную квартиру, они используют менее кардинальные дизайнерские решения. Основной упор сделан на визуальное восприятие, такие эффекты достигаются за счет использования определенных сочетаний цветов, замены обычной мебели на более компактные и трансформирующиеся модели, использования глянцевых поверхностей при отделке помещений, правильного размещения осветительных приборов и зеркал.
Ванную комнату можно объединить с туалетом, установив душевую кабину, таким образом высвобождается много места, которое используется более функционально.
Идеи ремонта двухкомнатной квартиры (фото)
Существует множество распространенных хитростей, помогающих организовать комфортное пространство. Чтобы при ремонте квартиры (двухкомнатной хрущевки) правильно применить все дизайнерские эффекты, в качестве учебного пособия можно использовать составленные профессионалами фотографии и схемы. Они выполнены в 3D-формате, что позволяет реально отобразить всю комнату.
Основные идеи, которые широко используются при ремонте в квартире:
- Изменение планировки.
- Использование специальных отделочных материалов, например, 3D фотообоев.
- Цветовые эффекты и орнаменты.
- Преобладание глянцевых и зеркальных поверхностей.
- Полный отказ от стандартных решений в пользу индивидуального подхода.
Дизайн холла по хрущевке
В одних домах эта часть квартиры узкая и длинная, в других почти полностью отсутствует, представляя собой небольшой квадрат площадью около 4 м2, а иногда даже меньше.Однако даже такие ограниченные пространства можно переделать до неузнаваемости. Конечно, самый кардинальный путь — перепланировка, но ее нельзя рассматривать только применительно к одной комнате. Такой процесс должен охватывать всю квартиру, иначе могут возникнуть большие проблемы с распределением оставшейся площади. Окончательный результат, после того как в двухкомнатной квартире сделан ремонт (фото см. Ниже), вас непременно порадует.
Рекомендуемая цветовая гамма — светлая, так как естественный свет вообще не проникает в коридор.Темные оттенки зрительно сужают пространство и доставляют ощущение дискомфорта. Их можно использовать только как небольшие настойки для акцентов или в предметах декора для контраста.
Отделочный материал должен быть легким, например, обои или декоративная штукатурка. В качестве украшения может выступить натуральный камень. Используя такой прием, важно не переборщить, так как кирпичная кладка в небольшом помещении позволяет значительно увеличить пространство. Чтобы правильно его нанести, лучше обратиться за помощью к профессиональным дизайнерам.В их базе полно различных вариантов и предложений, которые помогут наиболее грамотно отремонтировать квартиры двухкомнатной хрущевки. Фото, схемы и готовые проекты позволят вам наглядно увидеть возможный конечный результат, что избавит вас от самых распространенных ошибок.
Рисунок на стенах также важен при оформлении прихожей. Как правило, его выбирают с учетом доступной площади. В небольших помещениях рекомендуется выбирать отделку с мелким цветочным или геометрическим рисунком.Главное, чтобы он полностью соответствовал общему стилю. При использовании планки необходимо помнить следующее:
- вертикально визуально приподнимает потолок, однако может значительно приближать стены, такой вариант возможен только в широких помещениях;
- горизонтальный имеет эффект расширения, границы прихожей визуально отдаляются, комната выглядит свободнее и просторнее.
Перейти на кухню
Когда речь идет о практичности, удобстве и функциональности, первое, что приходит на ум, — это кухня.Именно в нем самое главное придерживаться этих критериев. Полноценное кухонное пространство состоит из рабочего пространства и, конечно же, на большой площади это вполне возможно сделать. Но что делать, если кухня 6 м 2, и все же не всегда правильная планировка? Прежде всего, не отчаивайтесь раньше времени. Опытные дизайнеры могут предоставить множество решений, как правильно сделать ремонт в квартире (фото).
Хрущевская двухкомнатная квартира позволяет воплотить в жизнь несколько смелых идей:
- Полная перепланировка (увеличивается площадь за счет других комнат).
- Объединение прихожей, гостиной и кухни, создание квартиры-студии.
- Применение мебели на заказ с учетом имеющихся размеров. Такой способ позволит максимально функционально использовать каждый сантиметр пространства.
Дизайн гостиной
При ремонте двухкомнатной квартиры многие сталкиваются с такой особенностью, как правило, это гостиная. Для решения проблемы можно соорудить дополнительную перегородку, которая будет представлять собой комнату от остальных.Используя этот метод, нужно быть готовым к тому, что комната значительно уменьшится. Как вариант можно установить перегородки. Они будут одновременно выполнять несколько функций:
- декор;
- освещение;
- границы помещения.
Этот метод позволяет использовать различные варианты отделки. Например:
- Стены. Основная часть комнаты выполнена в светлых тонах, а остальные — на несколько тонов темнее.
- Этаж.На выделенном участке используйте такое напольное покрытие, как в прихожей, тем самым как бы его расширяя (например, линолеум или ламинат). И застелите ковер прямо в комнате.
Благодаря этой технике интерьер гостиной станет насыщенным и оригинальным.
Что делать со спальней?
Особенность этого помещения в том, что оно длинное, но узкое. Конечно, это ограничивает возможности, которые они используют при ремонте квартир (фото).
Двухкомнатная хрущевская квартира имеет не очень удобную планировку (форму ботинка), что полностью исключает возможность расширения спальни или ее сужения.Однако для такого помещения существует множество вариантов визуальной коррекции.
- 1 путь . Заканчивать. Самая дальняя стена оформлена большими яркими красками. Такое сочетание визуально приблизит его.
- 2-ходовой. Обстановка. Вся мебель ставится не вдоль длинной стены, а перпендикулярно ей. Таким образом, комната приобретает форму квадрата. Для визуального расширения можно использовать зеркальные фасады.
- 3-ходовой . Зонирование. Пространство спальни разделено на 2 части: одна для отдыха, другая рабочая.Каждый из них оформлен в соответствии с назначением.
Вывод
Если в двухкомнатной квартире пора делать ремонт, не бойтесь смелых решений. Чем они необычнее, тем красивее будет смотреться комната. Хрущев — это не приговор, а вызов, вызывающий новые свершения в области дизайна.
Двухкомнатные квартиры, пожалуй, самое распространенное жилье в нашей стране, ведь какое-то время они составляли примерно 60% от общего количества квартир во всех строящихся домах.Если дома старой постройки, то площадь будет примерно такой же — от 40 до 45 квадратов для «хрущевок» и около 50 для «стойлнов». Но количество жителей может быть самым разным: от одного человека до четырех-пяти. Естественно, потребности и требования к обустройству разные. При проектировании двухкомнатной квартиры это необходимо учитывать.
Совместный и раздельный макет
Совместная планировка двухкомнатной квартиры — во вторую комнату попасть можно только через первую.Это удобно для одного человека: первую комнату можно использовать как гостиную, а вторую — как спальню. Точно такое же распределение «ролей» предпочитают пары. При таком составе семьи удобны совмещенные комнаты.
Если квартира находится в доме хрущевки, то кухни в ней очень мало. Для холостяка это вообще не проблема, а вот для пары небольшая площадь неудобна. Самый распространенный вариант ремонта в этом случае — совмещение кухни и первой комнаты.В некоторых вариантах компоновки это возможно. Полученная комбинированная площадь делится между двумя комнатами по-новому. Иногда под кухонную зону отводят только ту площадь, которая получается после снятия стены, и этого достаточно. А доступная площадь бывшего помещения разделена на две зоны — столовую и гостиную.
Варианты планировки двухкомнатных «хрущевок» разных серий
Семьям с детьми такая планировка неудобна.Детям обычно отводится дальняя комната — они ложатся спать раньше. При этом родителям в проходной комнате неудобно. Он не только совмещает в себе гостиную и спальню, поэтому нет никаких сомнений в конфиденциальности: дети могут решить пойти в туалет или на кухню в любое время. В этом случае основная идея ремонта — разделить комнаты путем переноса или установки новых перегородок, а также переноса дверей.
Одна из самых нелюбимых двухкомнатных квартир — «трамвай» легко трансформируется, превращаясь в жилье с отдельной планировкой и кладовой или гардеробной
Часто идут на уменьшение полезной площади.Но иногда, наоборот, жилая площадь становится больше. Так происходит в «хрущевках» с большим количеством кладовых: они превращаются в жилую зону, а все хранящиеся там вещи распределяются по шкафам или размещаются в них.
При достаточно большой площади двухкомнатную квартиру с проходными комнатами можно превратить в трехкомнатную. При этом проходная комната используется как гостиная, а подсобное помещение разделено на две небольшие спальни.
Раздельная планировка двухкомнатной квартиры — это когда в комнаты можно попасть из коридора.В целом такие квартиры удобнее для семейного отдыха: здесь две изолированные комнаты. Обычно довольны и дети, и родители.
Парам или одиноким людям при таком расположении часто удается объединить кухню и гостиную и тем самым сделать квартиру более современной и стильной.
Вариант ремонта двухкомнатной квартиры — объединение гостиной и кухни
Есть еще один популярный способ увеличения жилой площади: объединение комнаты с лоджией или балконом.В этом случае необходимо тщательное утепление бывшего балкона и его качественное остекление. При этом снимают оконную и дверную раму, а часть стены оставляют, используя ее как бордюрный камень или прилавок. его можно снять, но только ту часть, которая была подоконником, так как он не несет нагрузки. А чтобы оставшийся проем не выглядел чем-то инопланетным, его можно оформить в виде закругленных углов.
Стили в дизайне двухкомнатной квартиры: одно или нет?
Самым логичным будет оформление всей квартиры в едином стиле.Это не значит, что цветовая гамма должна быть одна. Нисколько. И один стиль не означает однообразия. В рамках одного стиля есть очень широкие возможности и множество вариаций.
Ремонт квартиры в современном стиле
Для примера посмотрите фото дизайна двухкомнатной квартиры в современном стиле. Направление в создании интерьеров — использование графических изображений.
Так как прихожая маленькая, вся мебель сосредоточена на одной стене.У противоположной стены, возле двери, только узкая обувница с мягким сиденьем. Зона прихожей отделена от коридора фигурным выступом на потолке. Графика в оформлении стен меняется, но цвета остаются прежними.
Как видите, цветовая гамма в этих комнатах сохранена. Оно и понятно: между ними нет четкой линии, хотя форма буквы «Г».
Кухня сохраняет графические мотивы, присутствующие в отделке стен прихожей, но цветовая гамма уже совсем другая, хотя стиль неизменен.Это не выглядит скучновато, общая идея прослеживается.
Кухня не очень просторная, но успела вписаться в виде буквы «П». Выступающая часть используется как барная стойка. Такое решение позволяет увеличить рабочую зону, а также расширяет функциональность: в этом месте можно перекусить, не накрывая на стол.
Различие между кухней и обеденной зоной подчеркивается дизайном стен, организацией потолка и освещением.Все они подчеркивают наличие двух зон разного назначения, хотя четких границ нет.
В ванной сохраняется бежево-коричневая цветовая гамма, но снова меняется характер интерьера. Обратите внимание на многоступенчатое освещение и дизайн потолка — интересное дизайнерское решение визуально приподнимает потолок. Также интересные и функциональные выступы по периметру. Это усложняет укладку плитки, но в разы увеличивает функциональность: нет необходимости в навесных полках: все идеально ложится на выступы.
В дизайне спальни появляется розовый цвет и графические изображения птиц на ветках. Стиль все тот же, но никто не скажет, что квартира выглядит однообразно.
Спальня — графика присутствует, но в совершенно другой интерпретации
Дизайн детской комнаты для девочки обычно выпадает из общей цветовой гаммы, но в то же время имеет общие черты.
Как видите, единство стиля не означает одинаковый дизайн.Все комнаты в двухкомнатной квартире имеют свой штрих, но что-то от общей идеи присутствует. Вот вы, разрабатывая свой проект, вы должны в первую очередь определиться со стилем, в котором вы видите свой дом. Затем найдите идею или несколько элементов, которые объединят все интерьеры в единое целое.
Романтическая двухкомнатная квартира
Это фото ремонта маленькой 2-х комнатной квартиры. В нем живет один человек, поэтому было решено снести большую часть стен. Прихожая в квартире очень маленькая: буквально шкаф с одной стороны и небольшой постамент с зеркалом с другой.Стены почти белые, освещение яркое.
Вход на кухню сразу из коридора. Чтобы техника не слишком выделялась на фоне светлых стен, ее тоже все сделали белыми, как и столешницу и стулья. Темные дверцы шкафов повторяются в темной столешнице обеденного стола.
Кухня тоже оформлена в романтическом стиле — кухонный фартук с фотопечатью намекает на туристические предпочтения хозяина
Дизайн легкий и воздушный.В маленькой комнате нет ощущения «давления».
В этом интерьере разыгрываются нестандартные формы: полукруглая мебель и перегородки. Так в гостиной большой диван в форме дуги, рядом с ним — овальный стол, плавные линии присутствуют и на многоуровневом потолке.
Непременный атрибут современного интерьера — телевизор — расположен в центре композиции напротив дивана.
Особенность этого интерьера в том, что спальня практически неразрывно связана с гостиной.Его разделяет только полукруглая перегородка-столбик. Вы можете увидеть кровать, которая частично видна из дивана в гостиной.
Спальня в этой двухкомнатной квартире практически не изолирована — от гостиной ее отделяет лишь полукруглая перегородка
Красиво оформленный совмещенный санузел. Нежное сочетание цветов, плавные линии сантехники, достаточное, но не резкое освещение. Все это создает красивый интерьер.
Дизайн этой квартиры нельзя назвать незамысловатым или скучным.Все комнаты оформлены в разных стилях. Их объединяет доминирующий белый цвет, а также плавные округлые линии в интерьере.
Дизайн двухкомнатной квартиры в типовом доме П-44
Эта серия домов строится несколько десятилетий. Их продолжают строить и сейчас, есть несколько модификаций. Тем не менее, общий принцип строительства остается стандартным: все квартиры с раздельной планировкой. От более ранних построек они отличаются большими размерами всех помещений, включая кухню.
Общее описание квартиры
Эта 2-комнатная квартира общей площадью 55 квадратных метров. м. К недостаткам можно отнести совмещенный санузел и неудачно расположенную дверь в меньшую комнату: она находится прямо напротив входа, что доставляет неудобства.
План перепланировки на двухкомнатную квартиру — убрать лишние перегородки
В данном случае квартира предназначена для семейного отдыха с детьми.Хозяева решили, что им будет удобнее с общей ванной. Также было решено убрать перегородку, отделяющую детскую от прихожей, и поставить на ее место вместительный шкаф-купе. Таким образом было сэкономлено немного места, но на функциональность это не повлияло.
Часть площади, которая находится справа от двери спальни, которая также будет использоваться как гостиная, также занята под большой гардероб.
Фото интерьеров
В прихожей площадь чуть меньше 6 кв.м. установлен шкаф. Ко второй стене прибивается вешалка, под ней стоит подставка. Он расположен над вешалкой, чтобы не привлекать внимания, корпус окрашен в тот же цвет, что и элементы мебели. Его верхняя поверхность может использоваться для хранения мелких вещей.
Гостиная и, по совместительству, спальня родителей оформлена в одном цвете — сером с бирюзовым декором. Это не случайно: такой прием позволяет не разграничивать пространство, несмотря на наличие перегородок.
В дальнем конце комнаты — рабочее место. Его разделяет небольшая высота, благодаря чему пространство не фрагментировано, но зонирование вполне очевидно.
Справа от двери большой шкаф под потолком. Частично имеет открытые полки, частично закрытые. На этом этапе можно сделать узкий или встроенный шкаф. Гардероб будет иметь ограниченный функционал — его ширина при такой планировке всего 80 см, что мало, но оборудовать его реально.А пока было решено поставить корпусную мебель — в целях экономии.
Детская не очень большая площадь, поэтому было решено использовать подоконник как стол. Для более компактного размещения предусмотрена двухъярусная кровать. Ниже представлены ящики, в которых можно хранить игрушки и постельные принадлежности.
Дизайн детской лаконичный и функциональный.
Кухня-столовая имеет сравнительно небольшую площадь — чуть более 9 квадратных метров. м. Чтобы визуально выглядело просторно, стены окрашивают в белый цвет.Мебель подбирается в таком же цвете. Выделяется яркое пятно на белом фоне — зеленом. Такого же зеленого оттенка мягкие чехлы на стулья.
В двухкомнатной квартире
Обратите внимание, что рулон. Продуманный ход. Во-первых, окна в этой планировке нелинейные, а расположены под углом. При таком расположении также удобно использовать римские. Могут быть и классические, но не в этом варианте дизайна: они не подходят по стилю. Но благодаря тому, что шторы компактные, появилась возможность использовать подоконник, а также придать ему интересную форму.
Несмотря на то, что перегородка в ванной была удалена, она остается небольшой. Приходится искать место для стиральной машины, так как в других помещениях ее некуда поставить.
Вид на санузел сверху — расположение предметов видно
Под умывальником нашлось место для стиральной машины. Он специально подобран с обширной платформой. Именно под ним находится машина, а платформа защищает ее от воды.
Чтобы комната не казалась такой маленькой, белый глянцевый. Изюминкой этого интерьера является панно из плитки синего цвета, одного из цветов, присутствующих в оформлении других комнат.
Как видите, этот дизайн двухкомнатной квартиры выполнен в едином стиле. В любом помещении прослеживается определенная стилистическая направленность, хотя они разные по цвету и создаваемому настроению и ощущениям.
В индивидуальном дизайнерском решении 2-х комнатной квартиры мы учитываем различные особенности:
- Если проживает один человек или пара, то одна комната используется как спальня, а другая как гостиная.В этом случае перепланировка не нужна. С другой стороны, индивидуальный дизайн-проект двухкомнатной квартиры может предусматривать объединение кухни с одной из комнат.
- Если в двушке живет семья с детьми, то дизайн-проект двухкомнатной квартиры предполагает, что одна из комнат будет детской, а другая спальней, в которой будут спать родители. При этом в этой комнате должно быть предусмотрено зонирование пространства, которое может потребовать перепланировки.
- 2-комнатный дизайн-проект должен отличаться функциональностью.Жилье не такое уж и большое, поэтому здесь нельзя тратить свободное место.
Современный дизайнерский подход предполагает наиболее рациональную организацию пространства с использованием стандартных и уникальных приемов. В оформлении можно использовать классический стиль и самые смелые идеи. Для придания уюта внутреннее пространство украшают различными элементами декора, функциональной мебелью, что позволяет сэкономить место и обеспечить удобное хранение вещей.
Мы работаем с качественными и проверенными партнерами-поставщиками мебели и отделочных материалов.Вы можете воспроизвести любой дизайн-проект с детальной точностью, заказав мебель и декор по выгодным ценам. Для наших клиентов партнеры предоставляют скидки.
Заказать индивидуальный дизайн-проект двухкомнатной квартиры
Предлагаем Вам выбрать готовый дизайн-проект двухкомнатной квартиры из представленных в нашей обширной базе. При необходимости стандартный вариант может быть адаптирован под параметры вашего двухкомнатного жилья с учетом ваших пожеланий.
Вы можете заказать разработку индивидуального дизайн-проекта двухкомнатной квартиры. Просто позвоните или оставьте заявку на сайте. Дизайнер по телефону подробно расскажет обо всех особенностях работы, встретится в удобное для вас время, заполнит анкету с пожеланиями дизайна и произведет замер помещения. Сразу же вы сможете подписать договор и внести предоплату. Через одну-две недели вы уже увидите первую версию дизайна и сможете вносить коррективы.
Никита Хрущев, 16 сентября 1959 г.Никита Хрущев с Уильямом Х. Лоуренсом из New York Times, 1959 г. Президент NPC, 16 сентября 1959 г. Фото Бенджамина Э. Форте, News Associates, Inc. Архив Национального пресс-клуба Советский премьер Никита Хрущев (1894-1971) выступил на обеде в Национальном пресс-клубе на следующий день после его прибытия в Вашингтон во время первого визита советского лидера в эту страну.Выступление транслировалось по общенациональному телевидению и транслировалось по радио «Голос Америки» на Россию, что стало первой такой передачей за десять лет, которую Советы не заглушили. Представители пресс-клуба настаивали на том, чтобы советские вопросы не проверяли. Иногда воинственные вопросы и ответы давали Хрущеву предвкушение американской реакции на его политику, идеологию и риторику, которые он должен был услышать во время пятнадцатидневного визита в Вашингтон, Нью-Йорк, Лос-Анджелес, Сан-Франциско, Де-Мойн. , и Питтсбург, до переговоров с президентом Дуайтом Д.Эйзенхауэра в Кэмп-Дэвиде. Визит Хрущева сигнализировал о хрупких надеждах лидеров обеих стран на оттепель в отношениях холодной войны …. Подробнее [PDF; 158 КБ] E0538C93F1160002'
} Время (чч: мм: сс) Представления : 00: 00-08: 44 Темы обсуждения
|
Молодая семья переделала старую квартиру своими руками, потратив меньше 4000 долларов. Сделайте из хрущевки «Конфеты». Молодая семья своими руками преобразила старую квартиру, потратив менее 4000 долларов на гарантии нашей компании
.Серия №1 Начало доброго дня всем читателям этого замечательного сайта! Совсем недавно открыл для себя и теперь не могу оторваться.Читаю проекты профессионалов, идеи и личный опыт. П …
Серия №1 Начало
Доброго времени суток всем читателям этого замечательного сайта!
Совсем недавно открывал для себя и теперь не могу оторваться. Читаю проекты профессионалов, идеи и личный опыт. Я стараюсь чему-то научиться, черпая информацию, перенимая опыт … Рад за тех, кто уже прошел этот долгий и сложный ремонт и получил отличный результат.Я понимаю тех, кто только запустил … а у кого голова ходит … и куча идей, которые не могут попасть в кучу, а разложить по полочкам. Надеюсь на опыт профессионалов и просто дельный, дельный совет от тех, кто не пройдет мимо моего блога.
Десять месяцев назад мы с мужем стали счастливыми обладателями прекрасной четырехкомнатной квартиры в старом фонде, 91,3 м2. (После «хрущевки» площадью 44,3 м2 это для нас показалось просто стадионом :)) Дом 1958 года постройки (я похоронил этот факт), кирпичные стены, огромные окна, высокие потолки, третий этаж. их четверка, спальня, кабинет и детский Юг…. Короче, плюсов для нас куча, кроме предстоящего грандиозного, дорогого и очень длительного ремонта !! Но этого не испугали, так как желание жить в светлой, просторной и уютной квартире оказалось сильнее опасений по поводу предстоящего ремонта.
Вот такая раскладка изначально была:
начальная раскладкаА час Х — час, и работа закипела … Для начала пришлось избавиться от всей старой отделки. А именно разобрать все деревянные полы, отнести все непереносные межкомнатные перегородки.Кстати, они тоже были из дерева. Отключить всю старую лепнину от стен до кирпича, разобрать санузлы. Работ было так много, что я уже боялся. Но мечты о конфетах вернули меня на место. Вдобавок ко всему этому весь процесс разборки нам с мужем надо было делать вдвоем !!
Вывезли тонны мусора, вывезли десятки пар перчаток, воткнули и измазали зеленоватым пятном, ни одной раны от острых и коварных гвоздей в стенах…
И квартира была выставлена на фундамент. И что получилось в результате демонтажа: Стены кривые с перепадом 4-5 см, а местами даже больше. Ужасные плиты перекрытия на полу с наплывом старого раствора, с прорезями между ними 5 см, с ямами и выбоинами. В таком же состоянии был потолок. Никакой геометрии. Трубы и проводка тоже в плохом состоянии, все под замену.
Набрались сил, терпения и, по возможности, средств… и обратился в ремонт. Теперь нашу конфетку ждала новая обертка и вкусная начинка.
Еще на этапе выбора будущего жилья, а эти поиски продолжались более 4 лет, нам и нашему мужу предъявлялись определенные требования к нашей будущей квартире. Это окна южные, высокие потолки, возможность совмещения кухни с гостиной, средний этаж в невысоком доме. И этот вариант нас сразу сделал, как только я туда вошел, сразу понял, где и что ломаю, и что хочу получить в итоге.И вот что произошло после перепланировки, и возведения новых стен от Сибиты:
Отметим сразу: назвать стоимость модернизации антикварного объекта недвижимости, сменившего несколько поколений арендаторов, практически невозможно. У каждой квартиры свои вкусы, аппетиты и возможности.
Ответчик «Фильм Ремонт»
Стоимость качественного ремонта с перепланировкой и реставрацией исторических интерьеров может быть сопоставима со стоимостью квартиры.В то же время результат гипсокартонно-пластикового «быстрого ремонта» в домах с солидной историей и богатым прошлым выглядит вызывающе нелепо. Так, двери стандартных размеров и окно Rama со стеклопакетами в металлопластиковом профиле полностью убивают детали и пропорции для исторических интерьеров. В то же время современный подход к ремонту, когда весь контур помещения (полы и стены) полностью герметичен, может только ускорить износ конструкций.
В квартире с коммунальным прошлым, сменившей несколько поколений жильцов, придется поменять проводку, трубы и сантехнику, окна и полы, отремонтировать или заменить двери.
Но при модернизации квартиры в нетиповом доме всегда нужен качественный рабочий проект. Это дополнительные расходы, которые в конечном итоге позволят управлять расходами и получить значительную экономию.
Чтобы превратить старую квартиру в более-менее комфортное жилье, нужно уберечь ее от запахов, порождающих неприятные ассоциации.
Главный источник дискомфорта в любой старой квартире, переваренной свежевыжатой или давно посаженной ремонтом, — запах шахты. Именно из-за них у того, кто попадает в такое жилище, возникают ассоциации с ветхостью и ощущением, что оно вот-вот развалится.
В то же время в домах дореволюционной застройки и сталинского периода практически всегда высокие потолки, а жилые помещения имеют приличные площади и объемы. Кирпичные стены — обычно довольно крепкие, но известняковая штукатурка, слои газет и обоев на долгие годы поглотили все испарения городской жизни. Еще один источник ароматов, всегда издающий старые постройки здания, — черные полы обожженных и пораженное плесневым грибком содержимое перекрытий.
Самое сложное — полы и потолки
Полы и потолки — самые затратные составляющие ремонта в домах Старого фонда, жилых домах периода конструктивизма и некоторых видов послевоенных сталиндов (например, в так называемые немецкие коттеджи) с перекрытиями с деревянными или металлическими балками.
Степень сохранности несущих конструкций везде разная. Чтобы оценить, потребуется ли их усиление, вам нужно будет произвести выборочное открытие и контрольный осмотр балок. Особого внимания к этому расходу потребуют влажные зоны кухонь и ванных комнат, а также углы, в которых сходятся трещины и потолки.
Паркетные полы в обычных квартирах у елки, как правило, не имеют художественной ценности. Если дубовый или буковый паркет в комнатах коснулся и пошел волнами — спасти его уже не удастся.Поэтому полы нужно будет разобрать. Будет демонтировано не только покрытие, но и черный пол из плит.
После снятия досок можно оценить состояние межбельного пространства. Как правило, при строительстве под черным полом оказывался весь мусор — битый кирпич, грешки, опилки, разделочные доски. А в помещениях с повышенной влажностью (например, на нижних этажах) все это содержимое иногда напоминает перематывающего бревна и подлежит ликвидации.
Как правильно работать с потолками? Это тоже непростой вопрос. Снятие слоев блаженства, восстановление гипсовой лепнины розеток, а также полный комплекс штукатурных и шпатлевочных работ теперь уже не будет, а квалифицированных мастеров днем с огнем нет. Если лепной декор не представляет художественной ценности, а представляет собой набор стандартных гипсовых элементов, восстанавливать его не имеет смысла. К тому же в городе, в условиях повышенных вибрационных нагрузок, сохранить обновленный потолок без трещин непросто.
Отдав 10-12 см высоты комнаты, можно с минимальными затратами Создать эффект безупречно сохранившегося старинного потолка
Самое распространенное решение для Старого фонда — натяжной потолок из гипсокартона на армированном каркасе. С ней можно аккуратно поговорить, украсить мультфильмами и розетками, имитирующими лепнину.
Стены должны дышать
Идите к стенам. Слои обоев и газет должны взять слой за слоем. Это трудоемкая работа, но результат не замедлит сказаться — атмосфера в комнате станет заметно лучше.В местах протечек необходимо предварительно сбить штукатурку (но обычно она там остается). Может оказаться, что, перейдя к кирпичной кладке, вы решите сделать ее частью интерьера. Покрытый бесцветной грунтовкой кирпич можно оставить в отделке в виде фрагментов — например, в углах или арочных проемах.
Помните, что стены должны «дышать». Поэтому виниловые моющиеся обои и глянцевые краски им не подходят. Более подходящий вариант — штукатурки на известковой основе на натуральной основе, а также обои классических цветов (в том числе на бумажной основе — ретростиль из коллекций прошлых лет).
А как насчет окон? Для домов с массивными стенами лучше всего подходят окна так называемой финской конструкции: внутри — стеклопакеты в деревянной раме, снаружи — одинарное лобовое стекло в тонкой алюминиевой раме, по цвету и вкраплению соответствующее фасадное решение этот дом.
Неформатные массивные двери тоже, скорее всего, потребуют реставрации или замены. Но в просторных помещениях изменить конфигурацию проемов, чтобы войти в современные стандартные двери, — не лучшее решение.Сохранность винтажных дверей может быть разной; Как правило, в местах замков и ручек есть пенсии, которые придется заделать вкладышами. Если двери не из массива дуба с резной бижутерией, а обычные, сосновые, выгоднее заказать такие же, только новые.
Ремонт без проекта — деньги на ветер
Итак, масштабы оценили. Но начать ремонтные работы Без плана и со смутным представлением о том, каким должен быть конечный результат, всегда деньги на ветер.Если мы говорим о типовых жилых домах, то можно встретить множество виртуальных сетей, в виртуальных сетях готовые проекты дизайнерских решений, «Домашние заготовки» с картинками, расчетами материалов и даже со съемками.
Если вы считаете, что обладаете безупречным вкусом и пространственным воображением, вы можете попробовать сделать визуализацию самостоятельно с помощью специальных компьютерных программ. Но совсем необязательно увлекаться компьютерным моделированием. Все-таки на освоение искусства визуализации своих интерьерных фантазий уйдет не один месяц, а ремонт затянется.
Чтобы увидеть, насколько гармонично работают интерьеры, как в них вписываются предметы обстановки, а также где вы разместите электрические розетки и выключатели (а это тоже немаловажно), стоит обратиться к дизайнерам. Гонорары признанных мастеров исчисляются пятизначными, а иногда и шестизначными числами. Но среди практикующих дизайнеров интерьера есть студенты или продвинутые любители, работающие удаленно и предлагающие свои услуги через знакомых или социальные сети.
Если речь идет о ремонте с перепланировкой, в проектную документацию будут добавлены план демонтажа и план установки новых перегородок.Но это тот случай, когда к созданию рабочего проекта придется привлечь не студентов, а представителей местных строительных организаций, которые позаботятся о согласовании проекта в надзорных инстанциях и получат разрешение в районной межведомственной комиссии ( вопросы согласования перепланировки мы подробно освещали в других публикациях).
Составив план расстановки мебели и бытовой техники, Вы можете выполнить схему расположения и установку электрооборудования (выключатели, розетки, выводы для настенных и потолочных светильников).
Обеспечить все
В конечном итоге ремонтный проект даже в небольшой квартире должен обзавестись видом на несколько десятков листов альбома. Когда весь комплекс работ от эскиза до ремонта под ключ выполняет строительная компания, в приложении к проекту должна быть подробная спецификация, в которой рассчитаны строительные объемы всех материалов — от грунтовок и сухих смесей для оштукатуривания кафельной плитки. Если вы сам дизайнер и прораб, составлять списки и производить расчеты придется самостоятельно, используя сметные калькуляторы и рекомендации на сайтах производителей и поставщиков материалов.
О чем еще нужно позаботиться перед ремонтом квартиры в доме, имеющем перекрытия деревянными или металлическими балками? Если вы предполагаете переборку пола или снос перегородок с последующей реставрацией, придется подниматься в гости к соседям снизу. Специалисты обслуживающей организации должны составить акт осмотра помещений нижнего этажа с фотографированием их состояния (необходимо, чтобы соседи не обязывали вас ремонтировать потолок с длинной трещиной за свой счет).
Текст: Филипп Урбан Фото: Алексей Александронок
В прошлом году было принято волевое решение о переходе в старый фонд.
Произвели так сказать переселение ребенка.
Денег на ремонт всей квартиры не хватило и сделали только кухню с туалетом.
На кухне у нас две основные проблемы.
Во-первых, он удлиненный и узкий. В длину 6 метров, а в ширину в широком месте у окна 1 м 94 см. В узком 1м 80 кажется.
И вторая и главная проблема — это наследие советских времен — санузел на кухне.
Эти вопросы и не было как-то решить и обыграть
Фото 2.
Обратите внимание на правый угол на трубе.
Это газовая труба, которая идет под потолком, а затем под потолком по всей длине идет к газовой плите.
Фото 3.
На фото видна серая пластиковая труба Fanins справа и газовая труба, спускающаяся из потолок слева..
Там, где есть страница, подходят и водопроводные трубы.
В конце ниши навесной шкаф с полками. Вентиляционный выход справа в верхнем углу
Фото 4.
Вход на кухню из коридора.
Дверь пришлось подарить в будущем.
Слева от того места, откуда снимок делается в туалет.
Фото 5.
Не знаю, кто проектировал эти дома, но мы это часто вспоминали.
Из-за сильно ограниченного места банальная покупка нового туалета завернулась в целый квест.
Фото 6.
Решение принято, входы в зал затянут полиэтиленом и началась презентация.
Так как мы немного затянули с принятием решения, у нас было около месяца на весь ремонт.
Надо было успеть к 1 сентября, чтобы уже не отразиться на учебном году и чтобы все желающие могли уехать с дачей в город.
Заранее скажу, что все получилось. Правда с бригадой мастеров, которые делали мне ремонт, я начал переговоры в феврале.
Фото 7.
Вечером первого дня начала работы когда мы пришли домой вместо обычной кухни увидели что.
Обнажены водопроводные трубы и по стенам понятен масштаб бедствия.
Фото 8.
Фото 9.
Фото 10.
Вскрыл полы, ничего интересного не нашел.
Изначально отказались от варианта с заливкой стяжки, так как не были уверены в полах.
К счастью, балки оказались металлическими, а не деревянными, но ничего не ругали.
Сразу заменил окна.
Фото 11.
Фото 12.
Фото 13.
Фото 14.
Уложены новые лаги и сверху новые черные доски
Фото 15.
В стене туалета вместо ряда кирпича обнаружена щель.
Но почему, Карл ??
Фото 16.
Вид из окна со стороны дороги
Фото 17.
Сшитые плиты перекрытия
Фото 18.
Как мы решили вопрос с санузлом?
Было решено скрыть часть кухни. Сделайте отдельную комнату с душем и раковиной и оставьте небольшой проход. «
Works» требовала ювелирной точности, чтобы соответствовать нашим размерам.
Особенно это касалось душевой кабины.
Стандартная отделка салона нам не подошла, так как у них все есть выход из угла.
Надо было строить сами. Поставили поддон и купили стеклянные шторы.Все это нашел в чешском дворе.
На этом фото видно, что газовую трубу решили не трогать. Испугался долгого одобрения с Ленгазом.
Фото 19.
Готовая подача воды в душевую
Фото 20.
Подцепилась.
Со стороны коридора были двойные гироскопы изнутри и одинарные снаружи
Фото 21.
Пробил все в унитазе и залил стяжку.
Тонкость покупки и усановки нового горшка заключалась в том, что очень маленькое расстояние и выпуск до пола.
То есть унитаз с бачком банально не поставили.
Красивый вариант — унитазы с подвесными бачками. Но даже не буду тут писать цену, сами погуглите))
Фото 22.
Который раз правильно вынули плитку из магазина, но опять наступили на те же грабли
Фото 23
Обработка душа изнутри со всевозможной септикой и гидроизоляцией
Фото 24.
Вводы и выводы воды и слива с кухни
Фото 25.
Отстой появилось у окна
Фото 26.
Фото 27.
Подготовить электрические выводы
Фото 28.
Плитка появилась в туалете
Фото 29.
И в душе тоже
Фото 30.
Стены становятся ровнее и красивее
Фото 31.
С учетом того, что у нас последний этаж и сверху нам педиком ничего не заливало один технологический люк снизу
Фото 32
Стены готовы к встряхиванию обои
Фото 33
Фотографировать в душе действительно очень узко.
Но можно понять, как решается вопрос с перегородкой
Фото 34.
Фото 35
Обои куплены под покраску. Выбрал самый первый оттенок светло-зеленого
Фото 36.
По ходу выяснилось, что лучше будет поменять аккум.
Так они и сделали. На кухне нам жарко и теперь даже зимой периодически перекрывают краны
Фото 37.
Туалет покупался на складах на Кушевке.
Тетя сказала, что весь старый фонд идет к ним, потому что больше никто не продает.
На итальянском подвесном танке решили сэкономить.
Фото 38.
Вспомните, как выглядела вода под водой и какой она стала сейчас.
Многие трубы идут потому, что от входа холодной воды есть ответвление на котле, которое висит там, где был навесной шкаф, а оттуда обратно идет горячая вода.
Фото 39.
После того, как все было сделано в голове, пришла мысль и не ставить счетчик газа.
Может зря конечно, но когда приехал мастер из Ленгаза, оказалось, что не так Морно переносить трубу.
Сделано все очень аккуратно, ничего не повредил. А вот трубы под потолком сейчас нет
Фото 40. Кухня
прибыла.
Фото 41.
Поставил новые двери
Фото 42.
Пришел холодильник и новая омыватель.
Стиральная машина ушла в нишу навесного шкафа.
В общем, оригинальная стирка должна была остаться прежней.Но когда ставили стены, то понимали, что можно туда засунуть, только дверь не откроется.
Пришлось покупать с вертикальной загрузкой. Доволен выбором.
Фото 43.
Ну как то кухня рухнула вот так.
Вытяжка находится на трубе в самом вентиляционном отверстии в углу. Также в душе есть принудительная вытяжка.
Места как раз хватит.
Стол стоит у окна.
Четыре человека за стол размещаются бесплатно, но можно и гида присесть вплотную))
В общем, ремонт сам ушел август.
Затем в сентябре дошла и техника и кухонная мебель.
Кухни пошли выбирали много где. По соотношению цена-качество кухня Марии остановилась.
Долго терпели мой мозг, перезванивали несколько раз, но все закончилось хорошо.
Единственный, кто был готов пойти на перенастройку по разумной цене.
Казалось бы простой вопрос с нестандартной отделкой столешницы в других местах было намного хуже и дороже.
Так живи сейчас))
Бесплатная оценить работу
А на следующий день придет подробная смета.Это бесплатно и ни к чему не обязывает.
Материалы по оптовым ценам
Куплю качественные тяговые и поршневые материалы по лучшей цене в Москве!
Контроль полного ремонта
Личный прораб каждый день общается с мастером и 2-3 раза в неделю приезжает лично проверять работу.
Ремонт квартиры в старом фонде имеет существенные отличия от отделов ЖКХ в новостройке.Замена изношенных инженерных сетей под силу только высококвалифицированным строителям. Здесь нужны опытные профессионалы, знающие особенности устаревших технологий и современных решений, способные сделать жилое пространство уютным и комфортным.
Ремонт 1-комнатной квартиры в хрущевке 33 кв.м.
Воспользовавшись бесплатным сервисом нашей компании по вызову, вы получите подробную консультацию по всем вопросам предстоящего ремонта, а также составите смету непосредственно под свой проект.
2 «Data-Desc =» Воспользовавшись бесплатным сервисом нашей компании по вызову специалиста, вы получите подробную консультацию по всем вопросам предстоящего ремонта, а также составите смету непосредственно под свой проект. «Data-Price =» 223216 ₽ «Data-Schema =» / img / sizes / 24flat-plan.png «data-thumbimg =» / img / apartments / 24flat-small.jpg «>
2 «Data-Price =» 227 685 ₽ «data-schema =» / img / sizes / 15flat-plan.png «data-thumbimg =» / img / apartments / 20flat-small.jpg «>
2 «Data-Price =» 256 685 ₽ «Data-Desc =» Воспользовавшись бесплатной услугой нашей компании по вызову специалиста по замерам, Вы получите подробную консультацию по всем вопросам предстоящего ремонта, а также составите верстку. смету прямо к вашему проекту. «Data-Schema =» / img / sizes / 30flat-plan.png «data-thumbimg =» / img / apartments / 30flat-small.jpg «>
Как проводится профессиональный ремонт в старом фонде
Инженерные сети в старом корпусе устарели и изношены, поэтому без замены нового не обойтись. Мастера «РВТ» прокладывают коммуникации по новым методам. Перегородки, стены и потолки тоже нуждаются в срочном обновлении. Провести такую работу собственными силами сложно. Требуются специальные знания особенностей старых построек, строительных технологий прошлого.Единственный разумный выход — обратиться к мастерам, знающим тонкости ремонтно-строительных работ в помещениях вторичного жилого фундамента.
Стоимость услуг строителей и проектировщика зависит от нескольких факторов. Это состояние несущих конструкций, инженерных сетей, необходимость утепления и перепланировки. Работа сотрудников компании RWT приведет к результату с гарантией по адекватной цене.
Узнать стоимость вашего ремонта
Не нужно выходить из дома
Не нужно идти в ремонт
Туалет и водопровод остаются в рабочем состоянии.
Предоплата не требуется. Ремонт проходит в 3-4 этапа, каждый оплачивается отдельно, так как их готово
.Подстраивайтесь под свой график
Работаем так, как удобно. Скажите выполнять ремонтные работы с полудня до восьми — и делайте.
Ремонт жилья из вторичного фонда разных типов
Панельные или кирпичные дома хрущевки постройки в Москве и других городах СССР с 1950-х по 1980-е годы. хрущевка — общежитие.Существенные недостатки хрущевок:
- малая жилая площадь;
- наличие проходных комнат;
- низкая шумоизоляция;
- малая площадь кухни;
- санузел совмещенный
- низкий потолок.
Несмотря на указанные минусы, благодаря тонким перегородкам комнату легко выкупить. Сотрудники компании «RWT» произведут грамотный ремонт квартиры в хрущевке и преобразят жилище, изменив его в лучшую сторону.
Дома П-111М
Большие отделы отличаются разнообразием планировки квартир. В Москве они находятся в районах Печатного, Гольяново, Бирюле, Кунцево, Жулебино, Южного Бутово и других. В Подмосковье их можно найти в Голицыно, Мытищах, Балашихе и др. В настоящее время строительство домов этой серии в Москве остановлено.
Дома 137 серии
Панельные конструкции имеют важные преимущества: скорость возведения и адекватная цена жилья, ровные стены, отдельные помещения, подсобные помещения, большие кухни.Такие помещения не требуют дополнительной черновой отделки. К недостаткам домов 137 серии можно отнести низкую звукоизоляцию и неудобную планировку. Также в них недостаточная воздухопроницаемость и чистота полов, проблемы с герметичностью швов панелей. Сделать перепланировку и ремонт квартиры в панельном доме — процесс трудоемкий, под силу только квалифицированным специалистам команды RWT.
Дома 502 серии
Дома 502-й серии построены еще при Леониде Брежневе.Как правило, это пятиэтажки с малогабаритными квартирами. Непродуманная планировка — главный недостаток. Поскольку большинство внутренних стен Медведи, только профессионалы смогут переуступить их.
Дома 504 серии
Это многоквартирные жилые дома, построенные в 1959-1972 годах. Вроде планируют разместить корабли, но окна внизу. К минусам жилья в таких постройках можно отнести небольшую кухню и неудобное расположение санузла. Однако в домах 504 серии отличная звукоизоляция, а в коридоре есть встроенный шкаф.

Есть тенденция на снос балконной перегородки, продлевая основную комнату. Помните, ЭТО ЗАПРЕЩЕНО! Делать это запрещается, как и переносить радиатор отопления на балкон.



Самый оптимальный способ отделить рабочую зону – приподнять ее на подиум. Также можно использовать мобильные перегородки или стеллаж с открытыми полками. Однако следует помнить, что громоздкие перегородки способны визуально уменьшить пространство.



В данном стиле также преобладают светлые оттенки в интерьере, но допускается дополнительный декор в виде картин, декоративных предметов и цветов. При этом главный акцент делается на функциональности и комфорте.
Основной светлый цвет разбавляется естественной природной палитрой. Мебель может быть состаренной, с облупленной краской или сколами на дереве. Дополнить интерьер можно уникальными предметами: сундуком или старым комодом. Шторы и занавески должны быть легкими и полупрозрачными, допускается средняя длина до подоконника. В качестве декора приветствуется большое количество рюшей, кружева, скатертей и керамических статуэток.