Перепланировка хрущевки 1 комнатной варианты: Перепланировка однокомнатной хрущевки: 5 вариантов перепланировки 1-комнатной хрущевки
Перепланировка однокомнатной хрущевки: 5 вариантов перепланировки 1-комнатной хрущевки
Одну из самых маленьких однокомнатных квартир в российском типовом строительстве можно превратить в современную студию
Несмотря на то, что большинство пятиэтажек постройки конца 1950-х годов снесены или готовятся к сносу, несколько серий всем известных (но не слишком горячо любимых) хрущевок пока относятся к «несносимым сериям». Это, например, панельная серия 1-515, блочная 1-510 и кирпичные 1-511, 1-447. Поэтому переделка хрущевки по-прежнему остается одной из самых обсуждаемых тем на дизайнерских форумах. В этот раз мы рассмотрим сразу несколько квартир в таких домах. Чаще всего это пятиэтажные дома (встречаются трех-четырехэтажные варианты) без лифтов и с жилым первым этажом. Толщина наружных стен, в зависимости от серии, 30-40 см, внутренних несущих — 20-30 см, перегородок — 8 см.
Самая главная объединяющая особенность таких квартир — очень низкие потолки (около 250 см, однако в ранних вариантах высота доходит до 270 см) и маленькие площади как жилой, так и нежилой зон квартиры.
Поэтому, если есть возможность, пространство в этой квартире целесообразней увеличивать, расширять и объединять, а не дробить. Однокомнатные квартиры несносимых серий похожи по планировке, незначительно различаются по площади, а так же имеют разное расположение окон и балконов: в угловых квартирах может быть два окна, в не угловых — одно. В каждой квартире есть балкон. Большим преимуществом является то, что все перегородки внутри квартиры не являются несущими, а значит, от них легко можно избавляться.
Некоторые из вариантов подходят для всех перечисленных серий, некоторые — только для одной, однако все они могут оказаться полезными источниками идей. Тем более, что в большинстве случаев еще до начала ремонта перепланировка хрущевки 1-комнатной должна быть согласована и узаконена.
Ксения Чупина
Ксения Чупина
Такие планировки квартир встречаются в домах серии 1-511, 1-447, 1-515/5. Вариант с балконом и еще одним окном — это угловая квартира.
Подобная планировка хрущевки может как добавить неудобств, так и наоборот — открыть множество новых возможностей.
Ксения Чупина
Ксения Чупина
Вариант 1-комнатной хрущевки с одним окном и балконом встречается в сериях 1-515, 1-511 и других. Данная планировка, в отличие от других, содержит раздельный санузел и коридор. Это же пространство в других планировках формально считается жилой комнатой, что ограничивает возможности перепланировки.
Ксения Чупина
Ксения Чупина
Здесь балкон располагается на длинной стене комнаты; в остальном — планировка не отличается от первого варианта. Такие квартиры встречаются в сериях 1-510.
Ксения Чупина
Ксения Чупина
1. Для всех серий
Перепланировка
Один из самых очевидных и беспроигрышных вариантов перепланировки однокомнатной небольшой хрущевки — превращение ее в студию.
В данном случае прихожая остается изолированным помещением, за дверью которого находится одно общее пространство, составляемое спальней, гостиной и кухней. Так же в углу за перегородкой находится гардеробная, а остальное пространство освобождается от лишних шкафов.
Телевизор, разделяющий спальную и гостиную зону, можно повернуть в любую сторону, небольшой обеденный стол — при необходимости разложить. В санузле помещается ванная, стиральная машина, умывальник и унитаз.
Подробности
- Помещения: изолированная прихожая, общий санузел, гардеробная за перегородкой, совмещенные кухня и жилая комната.
- Подходит для одного жильца, для пары, для гостеприимных хозяев и любителей порядка.
- Для согласования планировки потребуется заменить газовую плиту на электрическую.
- Плюсы планировки: отдельная гардеробная, свободное жилое пространство.
- Минусы планировки: отсутствие изолированных жилых комнат.
ALLARTSDESIGN
Для отделения спальни или гардероба не обязательно возводить стену с дверным проемом — достаточно просто отгородить помещение, оставив с одной или с двух сторон проходы шириной 65-90 см.
Fredric Boukari Photography
В случае с небольшой студией стоит обратить внимание на скандинавский стиль интерьера. Здесь важны легкость и отказ от лишних деталей, которые помогут зрительно расширить пространство квартиры.
ЧИТАЙТЕ ПО ТЕМЕ…
Характер нордический: Чему нам поучиться у скандинавов?
Ксения Чупина
Ксения Чупина
2. Для серий 1-515, 1-511
Перепланировка
В данном случае акцент сделан на большую кухню, санузел и ванную. За счет коридора увеличен размер санузла, таким образом в отдельной ванной помещается ванна, стиральная машина и умывальник, а в соседнем санузле — умывальник и унитаз. Такая перепланировка хрущевки позволяет добавить и к кухне пространство бывшего коридора — перегородка почти целиком сносится. В итоге на кухне остается много места для большой рабочей зоны, широкого холодильника и стола на четыре-шесть человек.
В жилой комнате располагается раскладной диван, большой шкаф вдоль стены, кресло и телевизор.
Подробности
- Помещения: раздельные санузел и ванная, общая кухня и спальня-гостиная, прихожая.
- Подходит для тех, кто не много времени проводит дома; для любителей готовить и собирать гостей за столом.
- Для согласования планировки потребуется заменить газовую плиту на электрическую. В других сериях коридор формально является частью комнаты, но иногда удается согласовать перенос на него санузла.
- Плюсы планировки: большие комфортные кухня и санузел; свободное пространство; нету ненужного коридора.
- Минусы планировки: отсутствие полноценной кровати и отдельной спальни.
The Hammer & Nail, Inc.
Такая перепланировка однокомнатной хрущевки хороша тем, что появляется большая кухня. Если очень постараться, можно спланировать кухню так, что в ней все уместится, и каждый предмет займет свое логичное место.
Приложенные усилия на этапе проекта окупятся радостью от работы на такой кухне.
СМОТРИТЕ ТАКЖЕ…
Дизайн кухни в хрущевке – 13 красивых примеров в разделе Фото на Houzz
Kevin Liberko
Необязательно загромождать стену гостиной шкафами или подставками под телевизор. Иногда лучшее решение — повесить его на стену и оставить пространство вокруг свободным.
Светлана Галфаян
Небольшая хитрость для отдельного санузла — наличие небольшого умывальника. Это решает много проблем и добавляет помещению функциональности. Такое решение актуально не только для хрущевки, но и для любой небольшой 1-комнатной квартиры.
Ксения Чупина
Ксения Чупина
Вариант 3. Для серий 1-511, 1-447, 1-515/5.
Перепланировка
Здесь из одной большой комнаты сделана маленькая спальня и гостиная, объединенная с кухней.
Одна из стенок спальни расположена диагонально под углом, параллельно ей стоит барная стойка, которая продолжает кухонную поверхность. Такое расположение помогает экономить пространство, а также делает его более интересным. В санузле вместо ванной стоит душевая кабина, кроме того, там расположены унитаз и общая столешница с умывальником, стиральной машиной и полками для хранения.
Подробности
- Помещения: изолированная маленькая спальня, кухня с гостиной, общий санузел, прихожая.
- Подходит для пары жильцов и для тех, кто в основном отдыхает дома.
- Для согласования планировки потребуется заменить газовую плиту на электрическую, проследить, чтобы площадь спальни не была меньше допустимой нормы.
- Плюсы планировки: отдельная спальня, комфортная общественная зона.
- Минусы планировки: недостаток зон хранения, отсутствие стола.
Frederick + Frederick Architects
Диагональные стены и мебель вносят разнообразие в любое помещение, придают ему индивидуальности и уюта.
Larsen
Вместо готовой душевой кабины всегда можно спроектировать душ по собственному вкусу и выложить поддон любой понравившейся плиткой или мозаикой.
ЧИТАЙТЕ ТАКЖЕ…
Планировочное решение: Ванная комната без… ванны
Архитектурная мастерская za bor
Несмотря на то, что барные стойки сегодня зачастую ассоциируются с интерьерами из 1990-х, есть способы сделать их стильными и уместными в современном интерьере.
Ксения Чупина
Ксения Чупина
Вариант 4. Для серий 1-511, 1-447, 1-515/5
Перепланировка
В этом варианте пространство можно трансформировать с помощью раздвижных стеклянных дверей: при необходимости можно сделать помещение единым или же — отделить спальную зону. Кухня расширена благодаря жилой зону, где расположен диван с журнальным столом и стол для шесть и более человек.
В оставшемся пространстве расположена отдельная гардеробная и кровать с телевизором. В санузле ванная заменена на душ, таким образом там помещается шкаф для хранения.
Подробности
- Помещения: гардеробная, спальня, гостиная с кухней, санузел, прихожая.
- Подходит для одного или двух жильцов, которые любят принимать гостей и устраивать небольшие застолья, а также для ценителей порядка и тех, кому важно уединяться.
- Плюсы планировки: интересное решение гостиной-кухни, отделяемая зона спальни, изолированная гардеробная.
- Минусы планировки: мало свободного пространства.
Hovanskaya Olga
Для небольших квартир хорошо подходит легкая, «парящая» мебель: стулья на тонких ногах, комоды — вместо тяжелых шкафов и кухонное оборудование с открытым цоколем.
ЧИТАЙТЕ ТАКЖЕ…
Микротренды: Парящие стулья и столы-невидимки
Стена с телевизором и тумбой для него — важное место в квартире, куда довольно часто будет падать ваш взгляд.
Так что стоит уделить ей особое внимание.
Denis Esakov
Прозрачные перегородки — решение для тех, кому важно разнообразие: с ними вы легко можете превратить одну комнату в две и наоборот.
Небольшой узкий шкаф-пенал в санузле избавит вас от проблемы хранения бытовой химии, полотенец и всего, что обычно лежит в ванной на всех возможных поверхностях. А зеркальная дверца поможет немного увеличить пространство.
ЧИТАЙТЕ ТАКЖЕ…
10 решений для «умного» хранения в ванной комнате
Ксения Чупина
Ксения Чупина
Вариант 5. Для серий 1-511, 1-447, 1-515/5
Перепланировка
Делить и так небольшую комнату на две — не самое удачное решение для маленькой однокомнатной квартиры. Но, если в этом есть сильная потребность, можно отделить одну из комнат не стеной, а дверью-гармошкой.
Таким образом, если дверь полностью открыта, коридор тоже становится частью комнаты. В маленькой комнате помещается небольшой шкаф, кровать и даже детская кроватка, во второй — гостиная и большой шкаф. В изолированной кухне расположен небольшой стол и рабочая зона. В санузле — ванна, унитаз, умывальник, стиральная машина и столешница с ящиками и полками для хранения.
Подробности
- Помещения: отдельные спальня, гостиная, кухня, санузел и прихожая с коридором.
- Подходит для семьи с маленьким ребенком или для тех, у кого часто остаются гости.
- Для согласования планировки важно проследить за площадями получившихся помещений, чтобы они не были меньше допустимой нормы.
- Плюсы планировки: две комнаты, трансформируемое пространство, много спальных мест.
- Минусы планировки: маленькие тесные помещения, недостаток мест для хранения.
Анна Лесик
Отличная замена телевизору (помимо книги) — экран с проектором, которые можно ставить в любое место и передвигать бесконечное количество раз.
Barbara Genda Bespoke Furniture & Interiors
Даже самый маленький стеллаж можно превратить в объект творчества, если спроектировать его специально под себя и покрасить в любимый цвет. Хороший пример такого дизайна — на этом фото.
АРТмебель.Москва
Спонсируемые
Ihr Ansprechpartner für Komplettsanierungen & Neubau | Düsseldorf
Спонсируемые
Düsseldorf | Kundenorientiertes Interior Design — Planung & Umsetzung!
переделка в двухкомнатную квартиру и студию с фото
Кирпичные и блочные 4-5-этажные дома, построенные в 1958-1985 годах, отличаются теснотой квартир. Грамотная перепланировка однокомнатной «хрущевки», позволяет рационально распорядиться ее пространством, обустроив все нужные зоны.
Каждый человек нуждается в комфортном, красивом и стильном интерьере, который будет соответствовать его потребностям.
Нюансы и особенности переделки квартиры в «хрущевке»
Содержание
- Нюансы и особенности переделки квартиры в «хрущевке»
- Обычной квартиры
- Угловой квартиры
- Проблемы при согласовании перепланировки однокомнатной квартиры в «хрущевке»
- Визуальное расширение помещения в однокомнатной «хрущевке» с помощью мебели и освещения
- Варианты перепланировки однокомнатной «хрущевки» разной площади
- 29 кв.
м. - 31 кв. м.
- 33 кв. м.
- 29 кв.
- Примеры перепланировки однокомнатной «хрущевки»
- В двухкомнатную квартиру
- В квартиру-студию
- Виды перепланировки однокомнатной «хрущевки»
- Визуальная перепланировка
- Снос или установка перегородок
- Зонирование
- Переделка в «студию»
- Заключение
- ВИДЕО: Стильная перепланировка хрущёвки 33 кв м.
- 50 идей для перепланировки однокомнатной хрущёвки:
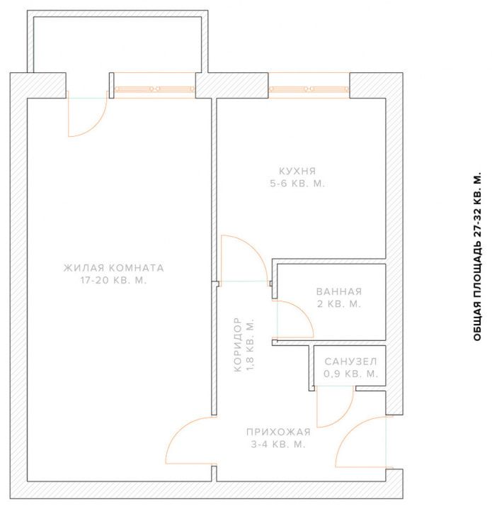
Схема переделки «хрущевки» однушки, зависит от ее расположения в доме. Жилое помещение располагается посредине здания либо на его углу. В квартире низкие потолки (около 2,5 м.), тесная кухня (до 6 кв.м.), маленькая прихожая (до 2 кв.м.), есть встроенные шкафчики, но несущих стен в середине нет.
Многие собственники решаются прибегнуть к перепланировке хрущевки и реорганизации пространства.
Обычной квартиры
В стандартной «однушке» обычно всего два окна, выходящих на одну сторону – на кухне и в пространстве зала.
К комнате практически всегда примыкает балкон.
Перепланировка квартиры должна быть согласованной и выполняться по закону.
Угловой квартиры
В угловых однокомнатных часто бывает три окна – одно в кухне, два – в комнате на разные стороны. Наличие балкона здесь не обязательно – в торце дома его обычно не делают.
Серьезные изменения в ремонте требуют разрешения от специальных организаций.
Проблемы при согласовании перепланировки однокомнатной квартиры в «хрущевке»
Создавать проект перепланировки 1-комнатной «хрущевки» лучше с участием профессионалов, так как снос или установка стен требует согласования с различными инстанциями. Убрать разрешат только не несущие межкомнатные перегородки, объединить комнату с балконом также получится не всегда. Наличие раздельного санузла также ограничивает возможности перепланировки.
Для согласования составляют проект, приглашают специалиста, который проведет обследование жилого помещения, утвердит изменения либо предложит наиболее подходящее планировочное решение.
Визуальное расширение помещения в однокомнатной «хрущевке» с помощью мебели и освещения
Выбор интерьерного стиля – один из главных факторов, позволяющих слегка расширить пространство. Самые подходящие стили интерьера – минимализм, скандинавский, японский, ретро, функционализм. Чем меньше лишних предметов, объемных драпировок, декора, тем лучше. Большинство вещей легко спрятать во встроенных шкафах, на антресолях.
Для создания более комфортабельного дизайна хрущевки, в первую очередь следует учитывать потребности и пожелания каждого члена семьи.
В прихожей располагают большое зеркало, способное добавить помещению простора. Все стены квартиры окрашивают или оклеивают максимально светлым материалом. Достаточное количество источников света, минимум контрастных деталей, также позволит расширить пространство.
Важно создать все необходимые зоны и не обделить никого личным пространством.
Варианты перепланировки однокомнатной «хрущевки» разной площади
Правильно выполненная перепланировка 1-комнатной «хрущевки» 30 кв.
м., делает квартиру просторнее, светлее. Каждый имеющийся квадратный метр здесь задействуется максимально рационально. Стандартный вариант благоустройства – обособленная прихожая и санузел, встроенный шкаф, частичное объединение зала и кухни.
Возможен снос перегородки между туалетом и ванной и совмещение данных комнат. Также допустимо расширить санузел за счет прихожей.
29 кв. м.
Здесь единственную комнату имеет смысл объединить с кухней, отделив от последней барной стойкой. Прихожую огораживают шкафом, раздвижной радиусной дверью, аркой или ширмой.
Уместно расширить или удлинить жилую комнату, соединяя ее с частью коридорного пространства.
31 кв. м.
Данное пространство позволяет разместить рядом с прихожей большой встроенный шкаф-гардеробную, стену между комнатой и кухней частично либо полностью удалить, заменить раздвижной стеклянной перегородкой.
Можно объединить кухню со смежным помещением, чаще всего с гостиной.
33 кв. м.
В таком помещении легко создать красивый дизайн, если разделить комнату пополам, объединив с одной из половинок кухню.
Входы в помещения делаются отдельными либо одно из них становится проходным. При наличии встроенного шкафа-кладовки, его присоединяют к комнате.
Допустимо объединить комнату с утепленным балконом и демонтировать часть внешней стенки, которая находится под окном.
Примеры перепланировки однокомнатной «хрущевки»
На фото перепланировка однокомнатной 30 кв. м. «хрущевки» выглядит различно, в зависимости от изначального плана, точной площади. Наличие балкона позволяет добавить около двух метров кв. полезного пространства.
В двухкомнатную квартиру
Перепланировать «однушку» в «двушку» вполне возможно. Единственную комнату делят пополам – получаются две маленьких комнатки, что особенно удобно, когда в квартире проживает два и более человека. Единственный минус планировки – в одной из комнат не будет окна, кроме вариантов с квартирами, расположенными в торце дома.
За счет дизайнерских возможностей, учитывающих все особенности, неудобное жилище можно сделать максимально комфортным и уютным.
В квартиру-студию
Удачная переделка «хрущевки» в современную студию также реальна. Стенку между кухней и гостиной сносят, газовую плиту заменяют на электрическую, как требует техника безопасности. Чтобы в пространстве, выделенном под кухню, осталось побольше места, столешницу объединяют с подоконником.
Хрущевскую квартиру часто преобразовывают в студию. Такой оригинальный вариант является более молодежным.
Виды перепланировки однокомнатной «хрущевки»
Перепланировка однушки «хрущевки» выполняется в различных вариантах. Она будет чисто символической или предполагающей установку новых стен, снос старых перегородок. Нередко применяется зонирование мебелью.
Визуальная перепланировка
Первый и самый простой вариант – переделать пространство чисто визуально. Для этого часть пола и стен окрашивают другим цветом, кладут ковер, ставят легкую складную ширму, выделяют отдельные участки при помощи осветительных приборов.
Из однушки также получается отличное студийное пространство с изолированным спальным местом с кроватью и шкафом.
Снос или установка перегородок
Перегородку, разделяющую кухню и гостиную, допустимо снести, установив вместо нее другую, в том числе расположенную по диагонали относительно кухни, прихожей. Иногда за счет прихожей расширяют санузел, присоединяют балкон.
При ремонте возможен частичный снос стены между кухней и залом, когда оставшуюся часть перегородки оборудуют барной стойкой или делают в ней арку.
Зонирование
Квартиру зонируют при помощи дивана, стеллажа, барной стойки, ширмы. Реже устанавливают колонны, подиумы с ящиками для хранения вещей, выстраивают арки, полуарки, вешают занавески на потолочном карнизе.
В некоторых хрущевках зал можно расширить за счет территории балкона.
Переделка в «студию»
Такая планировка предполагает удаление всех внутренних стен – за закрытыми дверями расположится только санузел. Входную дверь отделяют стеллажом, одежным шкафом, балкон также допустимо присоединить к основному помещению.
Санузел в данном случае не затрагивают, перенос этого помещения возможен только если квартира занимает первый этаж.
Заключение
Перед началом ремонта перепланировку «однушки» согласовывают, предварительно спланировав лучший вариант обстановки, выбрав подходящий интерьерный стиль. На тридцати квадратных метрах легко расположить все необходимое для комфортного проживания одного или двух человек.
ВИДЕО: Стильная перепланировка хрущёвки 33 кв м.
50 идей для перепланировки однокомнатной хрущёвки:
Перепланировка двухкомнатной квартиры: варианты и фото
Перепланировка хрущевки (2 комнаты, смежные варианты) на фото выглядит очень привлекательно. Это обстоятельство связано с тем, что не все современные квартиры имеют удачную планировку, позволяющую обустроить помещение в соответствии с пожеланиями и вкусами владельца квартиры. Тем более, что данная процедура является достаточно сложным видом ремонтно-строительных работ, требующим для этого специального разрешения.
В настоящее время Ст. 25 Жилищного кодекса предусматривает осуществление как перепланировки, так и перепланировки.
Перестройка не связана с изменением конфигурации квартиры. Так, например, в рамках этой процедуры можно перенести электропроводку внутрь квартиры. Здесь не деформируются стены и перегородки и не вносятся изменения в техпаспорт.
Перепланировка хрущевки (2 комнаты, смежные варианты) на фото выглядит очень привлекательно
В ходе операции перепланировки помещение существенно изменяется, например, демонтируются перегородки и стены (за исключением несущих).
Важно! Внесены изменения в техпаспорт жилого помещения.
Естественно, перепланировка – более сложная операция, чем переустройство, и регламентируется большим количеством нормативно-технической документации. Без получения соответствующего разрешения на ее проведение она не может быть выполнена.
Естественно, перепланировка – операция более сложная, чем переустройство, и регламентируется большим количеством нормативно-технической документации.
Более конкретно в процессе перепланировки могут быть выполнены следующие операции:
Дизайн хрущевки 2 комнаты без перепланировки на фото выглядит довольно серо и уныло. Поэтому многие домовладельцы решаются на его перепланировку.
При этом запрещаются операции по перепланировке квартир:

Дизайн хрущевки 2х комнатной без перепланировки на фото выглядит довольно серо и уныло. Поэтому многие домовладельцы решаются на его перепланировку. В этом случае необходимо заранее получить разрешение на проведение таких работ в органах государственного жилищного надзора. В противном случае собственнику жилья, решившему самовольно перепланировать свое помещение, может грозить крупный штраф.
В ходе операции перепланировки помещение существенно меняется, например, демонтируются перегородки и стены (за исключением несущих)
Перепланировка хрущевки 2-х комнатной
Этот тип жилья получил распространение в стране как «хрущевка». Это дома серий 1-510, 1-511, 1-477, 1-515, которые строились из кирпича и блоков, прежде всего в Москве и Московской области. В других регионах страны они также строились в большом количестве. Интерьер хрущевки 2 комнаты на фото без перепланировки выглядит очень уныло, и поэтому этот тип жилья чаще всего перестраивают.
Такой тип жилья был распространен в стране как «хрущевка». Это дома серий 1-510, 1-511, 1-477, 1-515, которые строились из кирпича и блоков, прежде всего в Москве и Московской области.
Советские города массово застраивались жильем такого типа в 60-х годах прошлого века по инициативе тогдашнего главы страны Никиты Хрущева. Он был небольшим из-за экономики и стремления правительства страны как можно скорее решить жилищный вопрос. Так, например, для квартир этого типа были характерны потолки не выше 250 см, отсутствие в домах лифта, совмещенный санузел. Площадь помещений здесь была мизерной, что негативно сказывалось на условиях проживания, поэтому варианты перепланировки хрущевки с фото 43 квадрата – очень популярная информация.

Обычно перепланировка хрущевки 2 комнаты на фото выглядит как совмещение двух смежных комнат, ведь комнаты здесь настолько узкие, что даже одна кровать с трудом может стать через одну из комнат. Стоит отметить, что помещения данного типа построены с использованием относительно легких строительных материалов, поэтому если вы решили сделать ремонт хрущевки в 2-х комнатах как на фото, перепланировка такого рода не составит для вас труда.
Идея! Например, перегородки можно демонтировать с помощью обычной кувалды.
В итоге такие смежные варианты перепланировки позволяют жильцам квартиры полностью удовлетворить свои потребности, несмотря на то, что квартира небольшая. Что касается вариантов перепланировки, то двухкомнатные хрущевки обычно проектируют как:
Из тех помещений, которые обычно попадают под «сокращение», можно назвать кладовку и санузел, очень часто они совмещают кухню и прихожую.
Из тех помещений, которые обычно попадают под «сокращение», можно назвать кладовую и санузел, очень часто они совмещают кухню и прихожую. Встречаются и такие необычные варианты, когда кухня совмещена с балконом или лоджией. В результате увеличивается его общая площадь, а у домовладельца и членов его семьи появляется возможность обедать «на природе».
Перепланировка сталинки 2 комн.
Жилье типа сталинки, или серии «сталинских» домов, построено в 30-60-х годах прошлого века. В связи с этим обстоятельством они считаются предшественниками хрущевок и обычно превышают по площади 43 квадрата. Более того, в некоторых случаях их строительство продолжалось до 1961 года.
По внешнему виду такие дома достаточно легко узнать, ведь они коричневого или желтого цвета. Причем балконы здесь могут быть красными или облицованными гранитной крошкой. Сталинская архитектура отдает предпочтение массивным балконам, эркерам и аркам. В любом случае комнаты здесь обычно больше по площади, чем хрущевки площадью 44 метра.
Жилье типа Сталин, или серия «сталинских» домов, построено в 30-60-е годы прошлого века
Несмотря на то, что очень часто такие постройки возводились по индивидуальным проектам, они имеют некоторые общие черты:
Дизайн без перепланировки «сталинской» квартиры обычно плохо вписывается в реалии жизни, а потому здесь возникает необходимость выполнить перепланировку
Дизайн без перепланировки «сталинской» квартиры обычно плохо вписывается в жизненные реалии, поэтому здесь возникает необходимость выполнить перепланировку. Обычно ремонт и перепланировка здесь проходят достаточно сложно, ведь, в отличие от хрущевок, такие помещения имеют толстые стены, которые сложно демонтировать даже перфоратором.
Совет! В связи с этим обстоятельством следует избегать столь кардинальных мер, так как обычно площадь сталинки вполне позволяет не объединять отдельное помещение со смежным.
Если говорить о тех сериях, где для создания стен и внутренних перегородок использовалось дерево, то их демонтаж может быть фактически невозможен, и это обстоятельство нужно будет уточнять отдельно перед началом работ. Если все же решение о сносе стен или перегородок вас порадует, следует учитывать, что обычно объединению подлежат вспомогательные помещения, например, кладовая или комната для прислуги. Они имеют небольшую площадь и не слишком приятный внешний вид. Дизайн перепланировки таких помещений будет хорошо смотреться только в сочетании с большими помещениями.
Иногда встречается такой проект перепланировки, который предполагает, наоборот, возведение внутренних стен и перегородок с целью создания на месте холла нескольких изолированных комнат. Дело в том, что для сталинской архитектуры было характерно создание помещений большой площади.
Иногда встречается такой проект перепланировки, который предполагает, наоборот, возведение внутренних стен и перегородок с целью создания на месте зала нескольких изолированных комнат
Перепланировка брежневки 2-х комнатной
Если вам нужна перепланировка «брежневки» 2-х комнатной, то смежные варианты на фото будут смотреться предпочтительнее хрущевок. Дело в том, что дома этих серий стали строиться в стране еще при Л.И. Брежнев, решивший построить для советских граждан более благоустроенное жилье, чем Хрущев. Пик их строительства пришелся на 1964 — 1980-е годы и, в отличие от предыдущих, при их возведении не использовались никакие блоки. Строились они в основном из панелей и кирпича.
Если вам нужна перепланировка «брежневки» на 2 комнаты, то смежные варианты на фото будут смотреться предпочтительнее хрущевок
Существует около 40 вариантов планировок этих квартир, поэтому «брежневки» очень часто проходят процедуру перепланировки, так как не все эти проекты были удачными.
«Брежневки» имеют смежные варианты размещения санузла и санузла, водопровод и мусоропровод и лифт, расположенный между этажами. Здесь очень часто одна из несущих стен примыкает к квартире соседей, а панельные варианты квартир имеют очень плохую звукоизоляцию.
Существует около 40 вариантов планировок этих квартир, поэтому «брежневки» очень часто проходят процедуру перепланировки, так как не все эти проекты были удачными.
Интерьер без перепланировки таких квартир очень похож на современный, поэтому особо сложных работ здесь обычно не делают. Так, например, очень часто обустраивается санузел, требующий демонтажа панельной сантехники. В некоторых случаях кухня совмещена с гостиной. Это делается для создания интерьера в классическом или английском стиле.
Благодаря тому, что стены и внутренние перегородки здесь панельные, демонтировать их достаточно просто. В том случае, если вы наткнетесь на несущую стену, вы столкнетесь с рядом трудностей, так как для ее демонтажа потребуется специальное разрешение, если это в принципе возможно
Благодаря тому, что стены и внутренние перегородки здесь панельные, демонтировать их достаточно просто.
В том случае, если вы натолкнетесь на несущую стену, вы столкнетесь с рядом трудностей, так как для ее демонтажа потребуется специальное разрешение, если это в принципе возможно. Также стоит отметить, что дизайн «брежневки» без перепланировки в ряде случаев подразумевает неудобное размещение кухни – между санузлом и наружной стеной. В этом случае часто возникает вопрос о переносе кухни в другое помещение.
Интерьер без перепланировки таких квартир очень похож на современный, поэтому особо сложных работ здесь обычно не делают
Балконы и лоджии здесь, в отличие от хрущевок, большие, поэтому очень часто на них обустраивают рабочие помещения, выносят туда часть кухни или оформляют комнату отдыха. Распространенной операцией является демонтаж встроенного шкафа за ненадобностью. Обычно вместо него выполняют гардеробную. Встроенную мебель часто демонтируют, поскольку она позволяет значительно расширить при необходимости жилое помещение. В результате может получиться так, что двухкомнатная квартира может стать однокомнатной или трехкомнатной двухкомнатной.
Согласование документов на перепланировку
В любом случае перед началом ремонтно-строительных работ на объекте необходимо будет получить на это согласование. Дело в том, что такая деятельность может привести к аварийной ситуации и даже к обрушению дома. За самовольную работу предусмотрен крупный штраф. Даже в том случае, если вы покупаете квартиру с уже выполненной перепланировкой, вам придется заплатить такой штраф.
В любом случае перед началом ремонтно-строительных работ на объекте необходимо будет получить на это согласование.
Если говорить непосредственно о порядке согласования перепланировки, то необходимый пакет документов можно собрать самостоятельно, а можно привлечь для этого дела специалиста из агентства недвижимости или архитектурного бюро. Итак, в первую очередь вам придется обратиться в местную ЖЭК или управляющую компанию и получить там выписку из домовой книги и лицевой счет. Далее вам придется обратиться в БТИ для изготовления технического паспорта.
После этого вам нужно будет заказать проект перепланировки в архитектурном бюро или строительной компании. Такой проект утверждает местное управление архитектуры. Его необходимо согласовать с пожарной службой, Роспотребнадзором, жилищным надзором и т.д. Также потребуется согласие управляющей компании, а также всех проживающих в квартире членов семьи. Более того, если у вас есть сталинки или хрущевки, которые относятся к объектам культурного наследия, вам также потребуется получить согласие органа, ответственного за охрану памятников культуры.
В среднем весь процесс согласования занимает около 2 месяцев
В среднем весь процесс согласования занимает около 2 месяцев. В это время работа запрещена под угрозой штрафа. Затевать перепланировку можно только при наличии на руках полного пакета разрешительной документации. Именно она даст вам возможность обустроить дизайн интерьера вашего помещения в соответствии с вашими пожеланиями и вкусом.
Затевать перепланировку можно только при наличии на руках полного пакета разрешительной документации
Если у вас нет времени на просмотр инстансов, вы можете поручить это агенту. Он соберет все необходимые документы, а вы получите их в готовом виде без посещения каких-либо контролирующих органов. Следует отметить, что вам придется потратиться на зарплату такого агента и оформление доверенности на него от вашего имени.
размеры однокомнатной квартиры, примеры оформления интерьера комнаты
Сегодня многие люди живут в небольших однокомнатных квартирах-хрущевках. Чаще всего они не только маленькие на метр, но и имеют довольно неудобную планировку, особенно для домов советской постройки.
Однако, если продумать такие важные моменты, как планировка и дизайн интерьера, даже из очень маленькой квартиры можно сделать очень уютный, комфортный, стильный и современный дом, который будет радовать вас и всех членов вашей семьи.
Планировка однокомнатной «хрущевки»
Чтобы правильно спланировать площадь однокомнатной квартиры, потребуется выполнить перепланировку.
Лучшим вариантом будет устранение перегородок , так как это позволит увеличить площадь комнаты и сформировать очень уютную и современную квартиру-студию.
Перегородки нужно снимать только те, которые можно снести без вреда для конструкции дома. Этот вопрос нужно будет согласовать со службами БТИ. Запрещается касаться несущих стен, вентиляции и газопровода, а также располагать санузел над жилой комнатой или кухней соседей. Выполнить эти требования крайне важно, так как их нарушение может привести к таким плачевным последствиям, как разрушение дома.
На этапе принятия решения о перепланировке квартиры необходимо учитывать такой немаловажный фактор, как количество проживающих в 1-комнатной квартире. Например, если в комнате будут жить родители и ребенок, необходимо разделить пространство на две отдельные спальные зоны, которые можно разделить с помощью перегородки или штор.
При планировке 1-комнатной квартиры, в которой будут проживать родители и двое детей, целесообразно предусмотреть установку детской двухъярусной кровати.
Современные модели таких кроватей имеют очень красивый и яркий дизайн. можно подобрать двухъярусную кровать с изображением любимых сказочных героев малышей, тогда они точно будут в восторге от своей кровати.
Одна комната 30 кв.м. м может выступать одновременно и в роли спальни, и в роли гостиной, и в роли детской. Также его можно использовать как личный кабинет, для чего также следует предусмотреть отдельную зону для письменного стола – домочадцы смогут работать и учиться.
В комнате не обязательно устанавливать прикроватные тумбочки — они только будут занимать много свободного места. А вместо стандартной кровати лучше всего установить раскладной диван, который очень легко и быстро превращается в удобную и просторную двуспальную кровать.
Стол в комнату можно использовать и как раздвижной — это очень удобно для небольших комнат, так как в сложенном виде стол займет минимум места, а при необходимости легко превратится в большой стол при в котором с комфортом разместятся все ваши гости.
Для малогабаритных квартир оптимально использовать не только трансформеры, но и кресла, кровати и даже шкафы, в которых спрятано спальное место.
Чаще всего владельцы однокомнатных хрущевок совмещают кухню с комнатой. Это очень удачное решение, ведь кухни в хрущевках очень маленькие, даже пару человек с трудом могут разместить одновременно. Именно поэтому лучшим решением будет объединение кухни с залом.
Однако эти две зоны все же можно немного разграничить — установив барную стойку или арку. Если такие варианты зонирования вам не по душе, то разграничить пространство помогут внешний вид отделки и мебели – используйте для кухни и комнаты напольное покрытие и стены разного цвета. Обозначить разные зоны можно также с помощью разного освещения.
В квартирах такого типа туалет и ванная обычно раздельные, но лучше сделать их совмещенными, а также вместо громоздкой ванны установить компактный угловой душ. Это немного увеличит свободное пространство помещений и сделает интерьер более уютным.
При таком варианте планировки санузла можно даже установить в ванной стиральную машину, а также выкроить место для подвесных полок или шкафчиков, в которых можно хранить различные предметы гигиены.
Еще одна идея, которая в последнее время пользуется огромной популярностью, – переоборудование балкона в просторную застекленную лоджию. Таким образом можно получить дополнительное пространство, где можно разместить еще одну кровать, или устроить там рабочий кабинет.
Самое главное в этом деле обеспечить качественное утепление лоджии, в ней всегда должна поддерживаться комфортная температура.
Все советские квартиры хрущевок были оборудованы небольшими кладовками, которые теперь можно переоборудовать в удобные и вместительные встроенные шкафы.
Дополнительное пространство можно выкроить и за счет сноса перегородки между комнатой и коридором.
Капитальный ремонт однокомнатной хрущевки
Как было сказано ранее, 1-комнатную хрущевку лучше всего превратить в квартиру-студию, в которой одно большое пространство будет выполнять функции нескольких разных зон – спальни, гостиной и кухни.
Капитальный ремонт квартиры лучше всего начинать с замены старых внутриквартирных коммуникаций — электропроводка, сантехника, батареи отопления. Для этого лучше всего обратиться за помощью к профессионалам, ведь с такими вещами не стоит рисковать.
Также обязательно замените старые советские деревянные окна на новые современные окна. Потребуют замены и входные, а также межкомнатные двери.
Следующими этапами будет стяжка пола, а также штукатурка, выравнивание и отделка стен.
Важный совет — еще до начала ремонта тщательно и точно просчитайте все предстоящие расходы — на стройматериалы, а также на оплату работы мастеров.
Не стоит экономить на качестве материалов, ведь от этого будет зависеть долговечность выполненного ремонта в квартире.
Варианты оформления интерьера
Помимо правильной планировки квартиры, очень важно правильно оформить ее внешний вид.
Чтобы максимально визуально расширить комнату, сделать ее более воздушной и уютной, дизайн интерьера должен быть выполнен в светлых тонах.
С этой же целью можно использовать в интерьере зеркала, а также различные стеклянные и глянцевые поверхности.
Еще один очень важный момент – чтобы в квартире было комфортно, необходимо правильно расставить мебель.
Лучшим решением в данной ситуации будет стиль «минимализм», поэтому мебели не должно быть много.
Например, если у вас в комнате есть диван, вы можете смело повесить над ним стильную навесную полку для хранения книг, фотографий, статуэток и других аксессуаров.
В углах комнаты можно установить такую мебель, как шкаф или тумбочка. Удачные варианты расстановки мебели представлены на фото ниже. Желательно, чтобы вся мебель была светлых оттенков – это очень важно для малогабаритной квартиры-хрущевки.
Если вам нравятся современные и нестандартные решения, стилизация стен креативными арками, нишами и колоннами будет отличной идеей.
Также очень важно избавиться от всех старых и ненужных вещей, ведь хранить их в маленькой однокомнатной хрущевке будет просто негде.
А жить в захламленной квартире совсем некомфортно.
Не стоит забывать и о таком важном вопросе, как освещение квартиры. Для маленькой однокомнатной хрущевки требуется максимальное количество света, ведь таким образом можно визуально сделать квартиру просторнее, объемнее и уютнее.
Используйте современные стильные модели светильников, которые можно установить на потолок или на стены. Если вы планируете установить люстру – выбирайте небольшую аккуратную модель.
Естественный свет тоже имеет большое значение, его тоже должно быть как можно больше. Поэтому, если есть такая возможность, делайте размеры окон максимально большими – это будет достигнуто за счет уменьшения расстояния между двумя окнами.
Большие окна смотрятся очень красиво и необычно, делают комнату более светлой и дышащей.
Желательно, чтобы отделка потолка и стен была светлой, но при этом следует учитывать, что стены должны быть хотя бы на пару тонов темнее потолка.
Обои могут иметь мелкие узоры в виде цветочков или завитушек.
А потолок может быть глянцевым и таким образом дополнительно отражать и рассеивать свет. В интерьер светлой комнаты можно добавить акценты в виде подушек, пледов и других аксессуаров, выполненных в контрастных тонах, например, синем, зеленом или фиолетовом.
В небольших квартирах с низкими потолками не стоит выбирать в качестве отделки натяжные потолки, так как они сделают вашу комнату еще меньше.
Оформляя интерьер квартиры, старайтесь придерживаться одного современного стиля, который вы можете выбрать по своему личному вкусу.
Сегодня очень популярны такие стили, как классика, модерн, лофт, шебби-шик, этно-стиль, минимализм, прованс, кантри, хай-тек, арт-деко и многие другие.
Даже из самой маленькой однокомнатной «хрущевки» можно сделать стильную современную и уютную квартиру, нужно только грамотно сделать перепланировку, а также красиво и оригинально оформить интерьер.
9 фото
Пример планировки однокомнатной квартиры-студии вы увидите в видео ниже.
м.