П44Т трешка: Дом П-44Т: Планировка 3-комнатной квартиры с размерами, дизайн-проекты ремонта квартир в домах серии П-44Т
Дизайн типовой трешки в П-44: 7 примеров — INMYROOM
Трешки в П-44 довольно просторные — 70—80 квадратов. Но две другие особенности — потолки высотой 2,65 м и сложности с перепланировкой — создают немалые трудности при обустройстве. Посмотрите, как с ними справляются профи.
Два полноценных рабочих места в одной гостиной
Владельцу этой трешки нужен был удобный стол для работы из дома, его жене — профессиональному визажисту — что-то вроде небольшой гримерной. Анне Моджаро удалось справиться с задачей: она организовала для каждого комфортное и стильное рабочее место.
Дизайн: Анна Моджаро
Квартира с большой проходной гостиной
В доме серии П-44Т проблематично сделать перепланировку из-за несущих стен. Эта квартира — не исключение: демонтировать получилось только перегородку, отделяющую гостиную от коридора. Гостиная в итоге стала проходной — пространство от этого только выиграло.
смотреть проект полностьюЯркий лофт без перепланировки
Заказчики (семья с двумя детьми) решили переехать из частного дома в квартиру и хотели создать в ней максимально комфортные условия и продуманный до мелочей интерьер.
Дизайнеры из студии Cultura-дизайн пришли на помощь и в короткие сроки создали обстановку, которая пришлась по вкусу всей семье.
Дизайн: CULTURA-дизайн
Интерьер с грамотным зонированием
Между одной из комнат и коридором демонтировали перегородку — это была почти единственная возможность увеличить площадь помещения и организовать в нем и гостиную, и спальню у окна.
Проблему зонирования дизайнеры студии Geometrium решили с помощью перегородки из деревянных реек и двустороннего стеллажа: со стороны гостиной — полки для книг и декора, со стороны спальни — альтернатива прикроватной тумбочке.
смотреть проект полностьюТрешка, которая кажется больше, чем на самом деле
смотреть проект полностьюСовременный интерьер с удачной перепланировкой
Архитектор Мила Титова сумела найти в типовой квартире новые возможности за счет рациональной перепланировки и использования авторской мебели, изготовленной на заказ.
Дизайн: Мила Титова
Интерьер, который профи оформила для себя
Дизайнер Инна Величко увеличила полезную площадь своей трешки, избавилась от длинного темного коридора, объединила санузел и обустроила удобный кабинет на балконе. Посмотрите, как здорово получилось!
Читайте дальшеДизайн: Инна Величко
Варианты перепланировок квартир серии П44Т
П-44Т – панельная серия домов с наружной отделкой «под кирпич», разработанная проектным институтом МНИИТЭП. Первые дома появились в 1997 году. Сейчас строительство серии продолжается. Очень много домов серии П-44Т построено в Москве и Московской области.
Серия П-44Т является улучшенной версией типовой брежневки П-44 с более качественной теплоизоляцией, более высокими потолками в квартирах (2,70-2,75 м), с вентиляционным коробом, устроенным не на кухне, а в прихожей.
Дома серии П-44Т могут быть разной этажности – от 9-ти до 25-ти этажей. Но чаще других встречаются 14-ти и 17-ти этажные здания.
Первые этажи являются нежилыми. Там обычно располагаются различные торговые предприятия и офисные помещения.
На этажах по четыре квартиры. Различают торцевые, рядные и угловые секции. Подъезды снабжены пассажирским и грузопассажирским лифтами. В секциях по 20 и 25 этажей три лифта, два из которых грузопассажирских.
Наружные стены дома состоят из железобетонных трехслойных панелей толщиной 30 см. Внутренние несущие стены (межквартирные и межкомнатные) представляют собой ж/б панели толщиной 16 и 18 см. Толщина гипсокартонных перегородок составляет 8 см. Крупноразмерные ж/б плиты толщиной 14 см выступают в качестве межэтажных перекрытий.
Среди плюсов данной серии: изолированные комнаты, хорошая звукоизоляция, раздельные санузлы (совмещенные в однокомнатных квартирах), регулируемое отопительное оборудование, добавление в планировку квартир эркеров, пандусы для инвалидов и возможность оперативного возведения домов, благодаря чему дома серии П-44Т получили столь широкое распространение и возводятся до сих пор.
Недостатком серии П-44Т является множество ограничений при проведении перепланировок квартир. Причиной этого является тот факт, что внутренние стены квартир в основном несущие.
Кроме того, автор проекта дома, институт проектирования МНИИТЭП, запретил в домах, построенных с защитой от прогрессирующего обрушения после 2007 года, делать дверные проемы в несущих стенах и удалять подоконные блоки, что делает невозможным объединение лоджии с внутренними помещениями квартиры.
Но имеется и положительный момент, связанный с перепланировкой внутренних помещений здания. В отличие от квартир в серии П-3, перегородка, которой гостиная отделена от территории коридора, относится к категории ненесущих (ее толщина всего 80 мм). Следовательно, ее можно демонтировать.
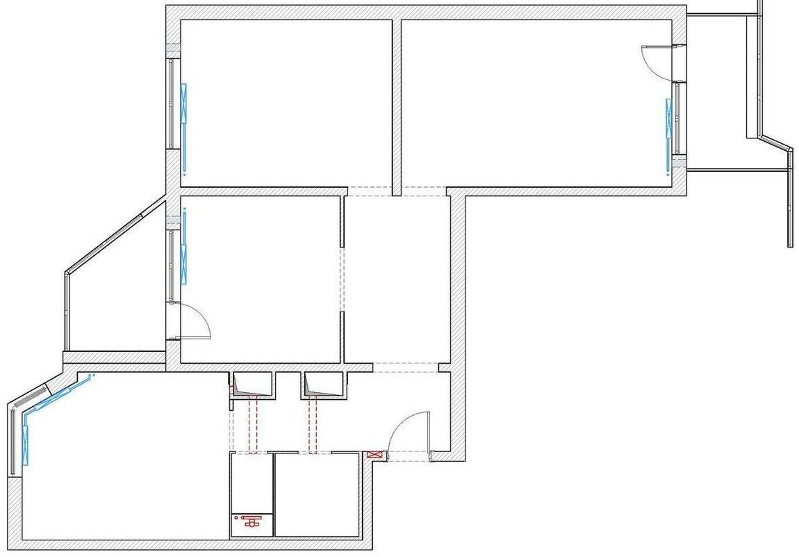
П-44т планировка с размерами 3-х комнатная квартира
Давайте сегодня посетим 3-х комнатную квартиру, панельного дома серии П-44Т от застройщика ДСК-1
Квартира получилась хорошая и просторная, но проектировщики не стали мудрить с дизайном и планировка оказалась похожая на другие аналогичные трехкомнатные квартиры панельных домов.
Комнаты все изолированные друг от друга. На кухне добавился большой эркер и в комнате угловых квартир присутствует треугольный эркер. В двух комнатах имеются балконы.
Мы с вами рассмотрим планировку трехкомнатной квартиры со следующими размерами:
Комната с балконом сапожок 17,8 кв.м. (на схеме номер 1)
Комната без балкона 14,1 кв.м. (на схеме номер 2)
Комната с балконом утюжок 11 кв.м. (на схеме номер 3)
Кухня с большим эркером 12.9 кв.м. (на схеме номер 4)
Коридор с прихожей 14,6 кв.м. (на схеме номер 7)
Жилая площадь 42,9 кв.м
Общий метраж квартиры без балконов 70.4 кв,м
схема планировки трёхкомнатной квартиры П-44Т с размерами
Открываем входную дверь и попадаем в предбанник. Впереди идёт стена с проёмом, в котором изначально сделана небольшая арка. Справа за дверью, есть небольшое пространство, куда может поместиться небольшая гардеробная или тумба для обуви.
В этом варианте мы видим пример такой тумбы под обувь.
Так же это место может занять красивое большое зеркало в полный рост.
Проходим вперёд и попадаем в самый центр прихожей. Нас встречают три двери. Слева большая двойная дверь ведет нас в комнату 11 кв.м. и балконом башмачок. И две рядом расположенные двери — это комнаты. Что правее самая большая комната 17.8 кв.м. с балконом сапожок, и что слева маленькая комната 14 кв.м. без балкона.
Несколько интересных идей в дизайне прихожей трехкомнатной квартиры. На фото видно, что в ближнюю нам комнату слева поставили двери купе.
Ещё один интересный вариант прихожей. В арку смонтировали освещение.
А здесь по правую сторону синей прихожей, в дизайне применили колонны с освещением.
Расстановка мебели в прихожей
Если в комнатах нужно больше простора и не захламлять шкафами комнаты, для этих целей подойдет прихожая.
По длинной стене установится большой шкаф.
Кто полностью не ушел в электронные книги, а собирает дома домашнюю библиотеку, интересное решение будет если в прихожей разместить полки для книг.
В углу впишутся угловые полки.
Комната с балконом утюжок
С прихожей заходим в комнату с большим дверным проёмом. Обычно эту комнату используют под гостиную или зал. Комната хоть и не очень большая, но квадратная.
А если убрать оконные рамы и демонтировать часть подоконника, можно продлить комнату и соединить вместе с балконом.Не всегда хватает жильцам трёх комнат. Частенько на балконах организовывают рабочие кабинеты. Оказывается и они находятся в такой ситуации, когда дорог каждый квадратный метр.
Развернёмся спиной к балкону и наблюдаем две межкомнатные двери, в стандартной планировке чистового ремонта от застройщика ДСК-1
Можно немного обыграть дверной проём. Соорудить небольшую арку и поменять обычные двери на раздвижные.
Две двери съедают много места. И если сделать однодверный проём, можно в угол комнаты поставить угловой шкаф.
А иногда демонтируют полностью всю стену.
И получается вместо комнаты просторный зал соединяющийся в одно целое с прихожей.
Большая комната с балконом Башмачок
Стандартная большая комната имеющая свой балкон. Размер по длинной стене 5.56 кв.м и по короткой 3.22 кв.м. Может предназначаться как для родителей, так и для детской комнаты.
Если балкон утеплен, стены можно обклеить обоями. Вывести розетки на балкон и для освещения повесить светильники.
Стенки которые мы помним ещё с Советских времён, становятся всё менее популярными. Вместо них в дизайнах и интерьерах квартиры часто появляются длинные комоды.
А вот цветы как были в моде, так и до сих пор украшают наши квартиры.
Комната без балкона
В третьей комнате, балкон отсутствует. Большое и широкое окно. Размер по одной стене 4,34 кв.м. а по стене с окном 3,22 кв.м.
Хорошее место для спальни. Плотные тёмные шторы, помогут отгородиться от утреннего солнышка и в выходной день выспаться на мягкой кровати.
Над кроватью оригинально смотрятся большие картины на стене.
Шкаф будет не лишним предметом в комнате.
Ванна и туалет в 3-х комнатной квартире
Выходим из комнаты и отправляемся на кухню. По пути в коридоре нам попадается на глаза двери в ванну и туалет, а справа коридора пустое, но очень удобное пространство для шкафа.
Пример такого шкафа в коридоре. Но не будем на этом останавливаться подробнее, а переходим в туалет.
Туалет в квартире всего один. Стандартного размера.
Ванна в ванной комнате стоит поперёк. Стиральная машинка свободно помещается в ванной.
Кухня в 3-х комнатной квартире
Дизайн и планировка кухни, ничем не отличается от двухкомнатной квартиры распашонки. Размеры одинаковые и имеется такой же большой эркер.
Пример такой кухни с мебелью.
Смотреть фото квартир в панельном доме П-44Т
Реальные ремонты и дизайны в квартирах
люди интересуются
Впускной механизм бачка с нижней подводкой, странное поведение
ответов 1
Какие размеры окон на балконе однушки п-44т
ответов 1
Стеклянный стол на кухне фото в интерьере
Шторы и тюль на кухне фото в интерьере
Двушка распашонка П44ТОбзор двухкомнатной квартиры распашонки 60 — 64 кв.
метра Панельного дома П-44Т
Серия П44Т
Многосекционные панельные дома, облицованные плиткой под кирпич (ярко-оранжевой, реже песочного цвета). Могут иметь высоту 9-25 этажей, однако наиболее распространены 14 и 17-этажные дома серии П44Т.
Дома П-44Т являются модернизированным вариантом брежневок серии П-44, разработанных институтом ГУП МНИИТЭП (существует также переходная серия П-44М, которая не нашла широкого применения). От прародительницы дома серии П44Т отличаются улучшенными планировками квартир, более эффективной шумо- и теплоизоляцией наружных стеновых панелей, а также наличием современных систем безопасности и оповещения в квартирах.
Усовершенствованы и системы отопления, водоснабжения и вентиляции.
Дом П 44Т состоит из угловых и рядовых секций по четыре квартиры, аналогично базовой серии П 44. В отличие от нее, на кухнях двух- и трехкомнатных квартир П-44Т имеются большие эркеры трапециевидной формы. В то же время кухни односторонних двушек, а также гостиные торцевых распашонок (2х и 3х комнатных) имеют треугольные полуэркеры. Площадь квартир также несколько увеличена.
Интересно, что П-44Т это, по сути, группа серий — существуют и применяются проекты домов П-44ТМ или ТМ-25, а также П-44К, которые имеют ряд отличий в планировках квартир, а также компоновке типовых этажей. Более того, иногда возводятся жилые дома, скомпонованные из нескольких вариантов секций — например две секции П-44Т и четыре секции П-44К. Или, например, вот так — секции п44 по бокам, а п44т посередине:
В настоящее время многоквартирные жилые дома П-44Т и их варианты являются одной из наиболее часто возводимых панельных серий (более 600 домов).
Они массово строятся в Москве и Подмосковье как для расселения пятиэтажек, так и в качестве коммерческого жилья.
Основным производителем деталей для домов данной серии выступает комбинат ДСК-1.
Важно: автор данной серии жилых домов, ГУП МНИИТЭП, запрещает делать проемы в несущих стенах, а также срезать подоконные блоки в домах, построенных после 2007 года!
запрет на устройство непроектных проемов
Расположение квартир П-44Т в типовой секцииП44Т фото:
П-44Т планировка с размерами
Планировки квартир в П44Т с вариантами перепланировки
Планировки двухкомнатных квартир серии П 44т
Двушка распашонка
Обычно имеет площадь порядка 60-64 кв.м. Кухня имеет большой эркер, а каждая из комнат по просторному балкону. По сути, это та же трешка только с «откусанной» одиннадцатиметровой комнатой и примыкающим к ней участком коридора.
Линейная двушка П-44Т
Площадь односторонних двухкомнатных квартир колеблется в районе 52 кв.м (51-53 кв.м). В них маленькие коридоры и балконы.
Однокомнатная квартира П-44 Т
Площадь однушек в П-44Т составляет порядка 36-38 кв.м. В них маленький балкон и совмещенный санузел.
Трехкомнатные квартиры П-44Т
По площадям и конфигурациям трехкомнатных квартир в серии П-44Т наблюдается наибольший разброс (примерно от 73 до 86 метров). Планировочных решений также существует очень много. Кухни в трешках угловых секций не имеют эркеров, а их площадь обычно не превышает 10 метров. В то же время 3 комнатные квартиры в рядовых и торцовых секциях П-44Т могут похвастаться кухнями с эркером и общей площадью от 12 до 14 кв.м.
Трешка с эркером в комнате (торцевая квартира п44т)
Подробнее о перепланировках квартир в домах П-44Т
Технический паспорт серии П-44Т
Первые владельцы квартир в новостройках получают от застройщика технический паспорт с подробным описанием конструктивных и эксплуатационных особенностей квартиры и всего дома.
Вы можете ознакомиться с таким паспортом на дом серии П-44Т:
3d проекции однокомнатной квартиры П44Т
3d планировка трехкомнатной квартиры с эркерами (угловая)
Перепланировка квартир в доме серии П44Т на примере трехкомнатной квартиры
Олег Бахметьев создал проект, отвечающий современным запросам молодой семьи. Квартиру отличает лаконичный дизайн интерьеров и начинка «умного дома».
На фото:
Основные акценты интерьера: бежевый и коричневый цвет, растительный рисунок обоев, орнамент сот на полупрозрачной панели изголовья кровати.
Сведения о квартире: 3-комнатная квартира в доме серии П-44Т (ЖК Полины Осипенко).
Владельцы квартиры: молодая семья с ребенком.
Пожелания клиентов: декоративность и современность.
Перепланировка квартиры П-44Т.
Перепланировка квартир П-44Т – настоящий подарок для дизайнера. Квартиры этой серии обычно представлены в свободной планировке, что позволяет выстраивать пространство, комфортное для проживания владельцев, реализовывая их самые смелые фантазии.
Дизайнер разделил квартиру на две части: в одной обустроили общественные помещения, в другой – спальни. Кухню-столовую и гостиную объединили в единое пространство. Несмотря на четкое зонирование (кухня-столовая отделена от гостиной конструкцией из керамогранита), помещение сохранило свой объем. Даже нашлось место для гардеробной комнаты, это «облегчило» остальные помещения – избавило от необходимости загромождать их шкафами.
В оформлении интерьера использованы четкие, легко читаемые геометрические формы. В основном – прямоугольные конструкции, в некоторых случаях – со скругленными углами. Строгая геометрия пространства акцентируется во всех интерьерах декоративными элементами, поддерживающими общую идею. Материалы использовались в основном натуральные: паркетная доска, керамогранит, пластик – по минимуму.
У этой квартиры есть два больших плюса: во-первых, окна в ней выходят на все стороны света, во-вторых, квартира напичкана разными инженерными системами, соответствующими стандартам самого высокого класса, что превратило это жилье в настоящий «умный дом».
Формы дивана и зеркала дублируют орнамент керамической плитки на полу, задавая ритм пространству, определяя общий стиль квартиры.
В лаконичном интерьере гостиной использованы только натуральные материалы: кожа, дерево и камень. Двери-ширмы в японском стиле подчеркивают минимализм дизайнерского решения.
Кухня-столовая отделена от гостиной «барной стойкой» из керамогранита.
В оформлении детской использованы теплые тона и плавные линии. В качестве яркого декора выступает необычная отделка стены в виде «корешков любимых книг» и бабочки на потолке.
Растительный орнамент стенового покрытия подчеркивает экологичность интерьера санузла.
перепланировка и интерьер помещений фото
Свою трехкомнатную квартиру можно обставить так красиво, что многие знакомые будут просто в восторге. Придумать дизайн для квартиры становится актуальным делом для многих хозяев. При оформлении площади учитывается множество важных нюансов.
Трехкомнатная квартира – большое пространство для дизайнерских экспериментов
Особенности трехкомнатных квартир п44т
Такие современные квартиры становятся популярными и обставить и можно современно и красиво. Квартира станет более комфортной, если продумать все как следует. Можно заранее позаботиться о цвете обоев и мебели.
Вариант планировочного решения – увеличение площади гостиной за счет демонтажа легкой перегородки между комнатой и коридором
В любой квартире можно сделать перепланировку, благодаря этому в ней будет еще просторнее. Важная площадь в квартире может быть визуально увеличена за счет выбранных фактур. В квартире должно быть все идеально подобрано, чтобы все соответствовало тому или иному интерьеру.
Здесь важно все продумать до мелочей. В переделке нельзя ничего упускать из вида.
Современный дизайн трехкомнатной квартиры п44 – важная деталь в любом обустройстве. Все должно гармонировать друг с другом, начиная от мелких цветов и заканчивая крупными деталями.
В каждом дизайне жилья должна быть своя неповторимая “изюминка”. Дизайн можно подобрать от классического до современного. Он должен быть подходящим и ненавязчивым.
Оформление интерьера разных комнат в трехкомнатных квартирах п44т
Дизайн проект должен быть разработан с учетом предпочтений хозяев. Комнаты должны быть обставлены компактной мебелью. При этом в каждом комнате должно быть комфортно и уютно.
В гостиной
В гостиной в дизайне трехкомнатной квартиры п44т должно быть все привлекательно. Так как гостиная является центром квартиры ее оформлению следует уделить особое внимание. Гостиную можно оформить в любом стиле.
Светлая гостиная в современном стиле с минимальным количеством мебели
Здесь можно наклеить фотообои, использовать материал, который повторяет фактуру древесины или схожих материалов.
Сегодня популярным стало нанесение венецианской штукатурки или роспись стен. Оригинальные методы раскраски остаются самыми востребованными.
Стены могут быть в таких тонах:
- темно-серый;
- бежевый;
- пурпурно-голубой;
- розоватый;
- зеленовато-салатовый.
Для многих трешка п44т – лучший вариант жилья, где сочетаются комфорт и уют. Для обустройства желательно брать экологически чистые материалы. К тому же они рассчитаны на долгий эксплуатационный срок.
Используя панорамные фотообои на акцентной стене, вы зрительно увеличите площадь гостиной
Для пола лучше взять натуральное покрытие, так как искусственные выделяют неприятные запахи и негативно влияют на здоровье. Если в гостиную ставить мебель, важно ее не нагромождать лишним. Здесь лучше всего оставить больше пространства для важных деталей.
На кухне
Что касается кухни, то здесь все должно быть компактно обставлено. Не должно быть ничего лишнего. Стены можно покрасить в персиковый или розовый цвет.
Можно поставить небольшой кухонный гарнитур.
С помощью углового гарнитура можно выгодно обыграть вентиляционный короб
Интерьер кухни не должен быть броским. Все можно сделать в нежных тонах. Пол можно сделать из ламината, а лучше всего из натурального дерева. Желательно, чтобы на кухне было минимум украшений. Больше всего следует уделить внимание установки техники.
Она должна быть компактно установлена и нигде ничего не должно мешать при готовке. Здесь же важно выбрать хорошее освещение, как и в случае с гостиной. Лучше всего установить точечные светильники. Они будут компактно вписаны в интерьер любой кухни.
В ванной комнате
Стены ванной можно обложить декоративными фризами. Асимметричное расположение фриза на стенах сделает их более широкими. Удобно, если сантехника в ванной будет в одном месте. Здесь хорошо сделать четкое освещение.
Декоративные фризы часто использую для украшения ванной комнаты в классическом стиле
Кроме этого, плитку в ванной можно уложить разных цветов.
Это придаст комнате потрясающий вид. Дизайн комнаты будет неброским, если использовать нежные тона. Сама квартира и дизайн квартиры п44т 3 комнатной квартиры должен соответствовать и нравиться вашим домочадцам.
В ванной комнате отделку керамической плиткой можно комбинировать с покраской или обшивкой деревянными панелями
В туалете
В комнате должно быть свободно и просторно. Ничего не должно быть нагромождено. Стены можно обложить белой или бежевой плиткой, а пол выложить плиткой пастельных тонов. Все должно быть равномерным и ничего лишнего.
Туалет – помещение небольшое, поэтому для его отделки лучше использовать исключительно светлые тона
В каждом отдельном случае п 44 дизайне 3 х комнатной квартиры должен быть выполнен так, как вы это задумали. Для разнообразия в дизайн можно добавить палитру цветов. Потолки в квартире можно отделать потолочной плиткой, а также навесными потолками. Особенно хорошо навесной потолок будет смотреться в гостиной.
В прихожей
Для отделки комнат лучше всего использовать износостойкие материалы.
В прихожей будет просторно, если в ней будет компактно расставлена мебель. Коридор должен быть свободным. Не нужно загромождать его лишними деталями.
Для хранения в прихожей большого количества вещей и одежды прекрасно подходит встроенный шкаф-купе
Прихожая – первая комната, в которой оказывается человек. Пол в прихожей можно сделать из ламината, он легко протирается влажной тряпкой. Здесь можно наклеить обои без рисунка и подобрать нужные осветительные приборы.
Практичным решением станет выделение входной зоны прихожей керамической плиткой
Сама по себе прихожая играет большую роль в любой квартире. Здесь все бросается в глаза. Лучше, если каждый день стирать здесь пыль и протирать пол. Тогда смотреться она будет идеально.
В детской
Сегодня в дизайн проекте трешки п44 можно сделать для детской комнаты. Она должна быть особенно просторной, где дети могут не только играть, но и делать домашние задания. В комнате можно установить кровать в виде корабля и машины, что особенно актуально.![]()
Детская в автомобильной тематике понравится мальчикам дошкольного возраста
Девочки обычно предпочитают романтические направления интерьера – прованс или шебби-шик
Здесь же нужно позаботиться о правильном освещении и обустройстве всей комнаты. Стены можно украсить фотообоями детской тематики. Также можно выбрать шторы с рисунков из мультфильмов. Все должно гармонировать с мебелью детской.
В детской лучше всего использовать такие цвета:
- нежно-голубой или розовый;
- желтый;
- сиреневый;
- оранжевый;
- малиновый.
Каждая квартира будет отличаться уютом, если в нее добавить теплые тона. В продаже есть огромный выбор отделочных материалов. Современный дизайн п 44 основной трешки идеально смотрится в новостройках, которую жильцы стены украшают обоями и материалами в виде кирпичных стен. Сегодня это новое веяние, которое доступно для отделки жилья.
Также это актуально не только для квартир, но и для дома. Интерьер в доме будет просто “класс”, если отделать стены материалами, имитирующими кирпичики.
Здесь можно поставить камин, который украсит любую гостиную.
Выбор стиля и дизайна трехкомнатной квартиры п44т
Современное жилье каждому хочется представить в лучшем виде. Хозяева используют в отделки разные материалы, а также своеобразный стиль. Каждому свойственен тот или иной вкус.
Урбанистический
Данный стиль вносит в интерьер легкие очертания и насыщенную палитру цветов. Сюда вносятся простые предметы меблировки и разнообразных элементов. В гостиной можно сделать красочные постеры, что является особенно актуальным. Стоит подбирать такой дизайн п 44 трешка, который будет радовать вас долгие годы своей изящностью.
Урбанистическому направлению интерьера свойственна динамика, универсальность и правильная геометрия
Для отделки стен подойдут материалы с текстурой, имитирующие керамогранит или асфальтовое покрытие. В качестве напольного покрытия подойдет керамическая плитка или паркет.
В отделанной п44т угловой трешке прекрасно смотрится компактно установленная мебель.
В дизайне есть нотки эстетики, практичности и разнообразных элементов. Также следует уделить внимание таким конструктивным элементам, как дверные проемы, столешницы, шкафы м тумбы.
Урбанизм довольно лоялен и гибок, вполне допускает внесение элементов из других стилей
Время от времени ремонт в трешке п44т фото проводится по составленному плану. Во-первых, для трехкомнатной квартиры необходимо подобрать набор инструментов, деталей, которые будут важны для отделки. Размеры могут быть самыми разными. Главное, чтобы все гармонировало.
Скандинавский
Такой стиль стал использоваться многими жильцами, так как здесь комнаты можно отделать природными и искусственными материалами. Здесь часто присутствуют прохладные оттенки. Предпочтительные цвета: желтый, бирюзовый и темно-синий.
Скандинавский интерьер прост и изящен, не требует никаких особых дополнений
Квартиры эконом класса отделываются имитированным камнем, штукатуркой, керамикой и деревом. Для оформления интерьера используются натуральные компоненты.
Они украсят необычный стиль и придадут легкости.
Японский
Сегодня акцент делается на японском стиле. В интерьере можно часто наблюдать традиционный стиль, присущий Японии. В интерьер вносятся оригинальные, необычные детали. При этом возможна установка небольшого количества аксессуаров и мебели.
Отличить японский интерьер от других направлений несложно
В интерьере присутствует ландшафтный дизайн, фото сакуры, которые украшают стены и мебель. Актуальным является использование вьющегося винограда, цветов небольших размеров.
Лаконичный декор, натуральные материалы, сдержанные тона – главные характеристики японского интерьера
Во многом важным в планировке такой трешки в п44т использование качественных материалов. Этому стилю свойственны низкие столики, диваны, лежаки. Все это устанавливается вровень с полом. Обычно используются такие цвета, как серый, черный и белый.
Хай-тек
Этот стиль наиболее популярным среди прочих стилей. С помощью наличия новинок в интерьере могут появиться необычные детали.
Сюда можно отнести использование металлических конструкций, пластика и стекла, которые идеально вписываются в любую квартиру.
Интерьер в стиле хай-тек является решением для современных людей с динамичным складом характера
Нередко в оформлении используется бетон и кирпич. Этому стилю свойственны прямые и четкие линии. Здесь не обойтись без применения небольшого количества узорчатых компонентов.
Лофт
Еще одним из современных стилей можно считать представленный стиль. В интерьере не присутствуют занавески. Все просто и лаконично. Такой стиль напоминает фабричное помещение, в котором все обустроено просто и без всяких “изюминок”.
Лофт-интерьер чаще всего выбирают ценители неординарных решений
Такой стиль предполагает максимум пространства. Здесь наблюдается больше стеллажей, небольших предметов интерьера. Обычно полы остаются бетонными. Стены в виде кирпичной кладки. Что касается потолков, то они покрашены в белый цвет.
После проведенного ремонта п44т трешка смотрится просто великолепно.
Просторные помещения могут быть отделаны яркими и броскими материалами, кому как нравится. Здесь же можно ставить искусственные камины, стелить на пол ворсистые коврики, сооружать необычные светильники, которые подчеркнут ваш неповторимый стиль и вкус.
Фьюжн
Данный стиль переводится, как сияющий. Многие использованные цвета сочетают с другими. В принципе получается много интересного в стиле. Здесь используются разные фактуры и декор.
В интерьер стиля фьюжн принято использовать яркие краски, прекрасно гармонирующие между собой
Этому стилю присущи яркость и легкость. В интерьере могут присутствовать самые разные расцветки. Это могут быть темные и светлые тона. Каждый выбирает на свое усмотрение.
Другие
Каждый стиль по-своему является лучшим и непревзойденным. В интерьере квартиры могут использоваться узоры, цветочные принты, овалы, квадратики и ромбики, которыми украшаются стены.
Для трехкомнатной квартиры можно выбрать единый стиль интерьера или оформить каждую комнату по-разному
Каждый хозяин выбирает для себя тот стиль, которые ему ближе всего.
К примеру, в стиле фьюжн популярные не точечные светильники, подвесные фонарики. Для отделки стен используются не только виниловые, но и бамбуковые и пробковые обои.
Людям старшего поколения, возможно, придется по душе интерьер в стиле ретро или винтаж
В перепланировке трешки п44т учитывайте все нюансы. Здесь следует обратить внимание не только на использование мелочей, но и выбор соответствующей кухонной утвари. В основном, обратите внимание на отделку потолков и стен. Они чаще всего привлекают внимание посетителей. Не перегружайте свои помещения жесткими и темными цветами. Лучше всего выбирать мягкие, нежные тона. В квартире должно быть всегда уютно и комфортно.
Примеры и идеи организация жилого пространства в квартире п44т
Существует множество идей по созданию комфортабельного жилья. Прежде всего, акцент следует сделать на дизайне квартиры п44т трехкомнатной квартиры.
Популярным становится использование торцевого камина в гостиной. Спереди и сзади его ограждают огнеупорные стекла.
Все это смотрится просто замечательно!
Среди современных моделей можно подобрать фальш-камин с весьма реалистичной имитацией настоящего пламени
В первую очередь нужно обратить внимание на цветовые гаммы, которые вы будете использовать в интерьере. Отличными оттенками можно считать:
- бежевый;
- серый;
- коричневый;
- синий;
- салатовый и т.д.
Для комнат с окнами на теневую сторону прекрасно подойдет светлый интерьер в бежево-бирюзовой гамме
Темные оттенки коричневого цвета будут уместны в гостиной с окнами на южную сторону дома
Чего стоит избегать при перепланировке и организации дизайна советы профессионалов
В первую очередь, в квартире должно быть больше свободного места. Это важно для детской комнаты и других помещений. В интерьере должны присутствовать только самые важные детали и никаких излишек.
Подводя итог всему вышесказанному хочется отметить, что в обустройстве квартиры лучше всего использовать один из предложенных выше стилей.
Каждый стиль кроет в себе некую “изюминку”.
Видео: Трехкомнатная квартира в стиле минимализма
Лучшие фото-идеи для трешки
Коридор п44т трешка дизайн | Домострой
Дома типа п44т активно начали возводить в конце 90-ых. Такое жилье отличалось улучшенной планировкой, поэтому многие семьи поспешили перебраться в новые квартиры.
И самой удобной до настоящего времени считается именно трехкомнатная квартира в таком доме, ведь на площади, которая обычно составляет более 80 квадратных метров, можно обустроить настоящее семейное гнездо.
Сейчас стало модным обращаться к дизайнерам, чтобы оформлением интерьера занимался специалист, но дизайн трехкомнатной квартиры п44т можно разработать и самостоятельно.
Несмотря на большую площадь, часто для того, чтобы сделать место проживания более удобным, требуется перепланировка. Но чтобы разобраться в том, какие изменения можно провести, следует сначала выявить особенности помещения.
Плюсы трехкомнатной квартиры
Так как предполагалось, что в трех комнатах будет жить семья, то все помещения изолированы друг от друга. Это огромный плюс, потому что можно по-разному оформлять интерьер в каждой комнате.
Еще один плюс домов серии п44т – большая кухня. Несколько метров свободной площади появилось благодаря тому, что проектировщики изначально решили выносить вентиляционные короба в коридор.
К тому же короб имеет форму прямоугольника, поэтому не составляет труда подобрать подходящую мебель и материалы для того, чтобы скрыть короб.
Наличие больших лоджий также позволяет экспериментировать. Иногда в таких квартирах есть сразу два балкона и два санузла – это также очень удобно.
Варианты перепланировки
Обычно в трехкомнатной квартире много несущих стен, что служит препятствием для проведения кардинальной перепланировки. Но все же есть несколько способов, как можно высвободить несколько метров полезной площади и разработать оригинальный дизайн 3 комнатной квартиры п44т:
- Самый распространенный прием – объединение кухни и гостиной.
Этот способ перепланировки квартиры позволяет всей семье вечером собираться в одном помещении. Если стена несущая, то обычно просто прорубается дверной проем или арка, чтобы удобно было проходить из зала в кухню.
- «Расширить» кухню также можно, если соединить ее с лоджией. Получившееся дополнительное пространство можно занять обеденным столом, барной стойкой или шкафами для хранения посуды.
- Лоджию можно использовать как небольшую комнату. Для этого закрывается оконный проем и меняется дверь. Также придется утеплить получившееся помещение или постелить полы с подогревом.
- Избавляться в квартире можно от незадействованного пространства в коридорах. Коридор можно присоединить к ванной и получить место для стиральной машинки или сушилки для белья. Кроме этого, часть узких проходов можно присоединить к площадям комнат и установить там шкафы купе.
- В некоторых домах есть эркер, и с этой деталью также можно экспериментировать – например, в этом пространстве можно организовать место для отдыха или небольшую библиотеку.

Разработка интерьера в трехкомнатной квартире
Интерьер трехкомнатной квартиры может оформляться по-разному. Все зависит от проведенной перепланировки и количества членов семьи.
Нужно не забывать, что, несмотря на большую площадь и наличие нескольких окон, в домах такого типа довольно темно. Именно поэтому при разработке дизайна трехкомнатной квартиры п44т следует хорошо продумать, как будет освещаться жилое помещение.
Все комнаты могут оформляться как в одном стиле, так и в разных. К примеру, можно обустроить кухню, коридоры и холл в одном стиле, гостиную – в другом, а спальни – в третьем. Но в любом случае должно сохраняться ощущение гармонии.
Дизайнеры рекомендуют не использовать везде классику. Колонны, лепнина, тяжелая мебель и кованые детали могут сделать квартиру неуютной и холодной, напоминающей музей. Лучше отдать предпочтение современным стилям и необычной отделке поверхностей.
Интерьер гостиной
Дизайнеры советуют оформить гостиную в светлых оттенках.
А если проведена перепланировка и в зале есть обеденная зона, то лучше выбрать бежевую цветовую гамму или любые пастельные тона.
Так как гостиная станет местом, где будут проводить свободное время все члены семьи сразу, то ее лучше разделить на несколько зон. В комнате кроме дивана, может быть уголок с креслом, где можно будет читать, а также рабочий столик, где можно установить компьютер или ноутбук. Если зал объединен с балконом, можно поставить барную стойку и оформить дизайн помещения, как в кафе.
Очень интересно будет смотреться гостиная, оформленная в скандинавском стиле, сочетание белого цвета и натуральных материалов всегда актуально. Если хочется поставить камин и большой диван, то можно выбрать американский стиль. Любителям экзотики можно посоветовать выбрать африканский стиль.
Стиль, выбранный для гостиной также можно использовать для оформления всех коридоров и прихожей.
Оформление спальни
Если в трехкомнатной квартире, например, живут две пары, то придется сделать две спальни, они могут быть оформлены в зависимости от предпочтений хозяев.
Но даже если в доме будет только одна спальня, желательно, чтобы интерьер этого помещения отличался от основного стиля.
В последнее время дизайнеры часто оформляют спальню в арабском стиле. В этом случае можно использовать недорогие материалы для отделки, главное – текстиль. Такая спальня может стать самой необычной комнатой в доме.
Так как в спальне не нужно устанавливать бытовую технику, то можно выбрать для оформления стиль эко. Деревянная кровать, бамбуковая мебель и постельное белье из натуральной ткани позволят каждый вечер хорошо расслабиться и забыть о городской суете.
Если интерьер спальни разрабатывается для молодой девушки, можно выбрать французский стиль и стиль шебби шик.
Дизайн детской
Если в семье есть ребенок, то одна комната, как правило, автоматически становится его собственностью. Поэтому выбирать стиль лучше исходя из характера ребенка и его возраста.
Подростки обычно очень привередливы, но наверняка, оценят необычные вещи такие стили, как лофт, поп арт или минимализм.
Так как детской становится обычно самая маленькая комната, то нужно подобрать практичную и многофункциональную мебель. Можно установить кровать на подиуме, внутрь которого можно будет прятать все вещи ребенка или спальное место прямо над рабочим столом.
Необычное использование третьей комнаты
Когда в квартире проживает только семейная пара, то обычно третья комната пустует. Ее можно сделать помещением, где будут останавливаться гости, но дизайнеры предлагают новые способы использования этой площади.
Так можно не загромождать другие помещения большими шкафами, а устроить в этой комнате гардеробную. Можно поставить открытые стеллажи, большое зеркало или заклеить зеркальной панелью дверь.
Кроме этого, небольшое помещение отлично подходит для того, чтобы там обустроить домашний спортзал. Многие семьи покупают беговую дорожку или велотренажер, но не знают, куда поставить эти тренажеры.
А если в квартире проживают творческие люди, то третья комната может стать местом для уединения и творчества: библиотекой, кабинетом или мастерской.
Дизайн кухни
Особенно в тех помещениях, где проведена перепланировка, хозяевам сложно выбрать стиль интерьера для кухни. Если в стене есть дверной проем или арка, то нужно постараться сохранить гармонию.
Часто дизайнеры используют похожие стили, но одно цветовое решение. Можно увидеть сочетание современного стиля и стиля хай тек, французского и прованского стилей, а также голландского и скандинавского.
Трешки в П-44 довольно просторные — 70—80 квадратов. Но две другие особенности — потолки высотой 2,65 м и сложности с перепланировкой — создают немалые трудности при обустройстве. Посмотрите, как с ними справляются профи.
Два полноценных рабочих места в одной гостиной
Владельцу этой трешки нужен был удобный стол для работы из дома, его жене — профессиональному визажисту — что-то вроде небольшой гримерной. Анне Моджаро удалось справиться с задачей: она организовала для каждого комфортное и стильное рабочее место.
Квартира с большой проходной гостиной
В доме серии П-44Т проблематично сделать перепланировку из-за несущих стен.
Эта квартира — не исключение: демонтировать получилось только перегородку, отделяющую гостиную от коридора. Гостиная в итоге стала проходной — пространство от этого только выиграло.
Яркий лофт без перепланировки
Заказчики (семья с двумя детьми) решили переехать из частного дома в квартиру и хотели создать в ней максимально комфортные условия и продуманный до мелочей интерьер. Дизайнеры из студии Cultura-дизайн пришли на помощь и в короткие сроки создали обстановку, которая пришлась по вкусу всей семье.
Интерьер с грамотным зонированием
Между одной из комнат и коридором демонтировали перегородку — это была почти единственная возможность увеличить площадь помещения и организовать в нем и гостиную, и спальню у окна.
Проблему зонирования дизайнеры студии Geometrium решили с помощью перегородки из деревянных реек и двустороннего стеллажа: со стороны гостиной — полки для книг и декора, со стороны спальни — альтернатива прикроватной тумбочке.
Вкратце
В доме серии П-44Т проблематично сделать перепланировку из-за несущих стен.
Но дизайнерам все равно удалось создать удобный интерьер для молодой семьи: гостиную увеличили за счет коридора, на лоджии обустроили кабинет и спроектировали много систем хранения.
Подробнее
Интерьер этой трехкомнатной квартиры дизайнеры Оксана Муратова и Маргарита Репина создали для молодой семейной пары, у которой в скором будущем родится ребенок.
Дома серии П-44Т отличаются тем, что в них почти все внутренние стены несущие. Эта квартира — не исключение: демонтировать получилось только перегородку, отделяющую гостиную от коридора. Также в комнате убрали окно и балконную дверь.
Гостиная в итоге стала проходной. Справа от дивана располагаются две двери, одна из которых ведет в детскую комнату, а другая — в спальню. Здесь как нельзя лучше подошли двери скрытого монтажа: они растворяются в пространстве и не привлекают к себе внимание. Но, что особенно важно, у таких дверей нет наличников, и их можно буквально «втиснуть» в небольшое пространство.
«Отправной точкой в создании интерьера кухни стала плитка на фартуке от испанского бренда Mainzu — ее выбрала заказчица еще до начала работы над проектом», — рассказывает Оксана Муратова.
В кухне плитка сочетается с серой влагостойкой краской и напольной плиткой в форме гексагонов.
Также заказчики хотели видеть в интерьере деревянные панели, и дизайнеры предложили оформить ими стену за телевизором. Выбрали панели в форме ромба, а само панно немного «утопили» в специально подготовленную нишу.
Стены и пол в ванной комнате облицованы керамогранитом: для центральной стены (при входе) и пола выбрали плитку пэчворк. Остальные стены отделаны фоновой плиткой под бетон.
Прихожая совсем небольшая, поэтому шкаф для одежды решили разместить в гостиной. А в самой прихожей сделали обувницу: она подвесная и одновременно выполняет функцию комода — на нее можно положить ключи, духи и другие мелочи. А еще зарядить телефоны перед выходом: рядом предусмотрены розетки.
В коридоре расположены два венткороба на некотором расстоянии друг от друга. Чтобы не терять полезную площадь, здесь сделали встроенный однодверный шкаф: внутри можно хранить бытовую химию, а также пылесос.
Кабинет на лоджии — основное место для размещения растений. Часть из них будет стоять на поверхности стеллажа и стола, а некоторые — на полочках, закрепленных на специальной панели. Вся поверхность панели перфорированная, поэтому расположение и количество полок всегда можно поменять.
В кухне поставили раскладной обеденный стол — заказчики любят готовить и принимать гостей. К окну примыкает деревянная лавка с мягким сиденьем и спинкой: она имеет продолжение в виде низкого модуля с открытыми полками. Этот модуль служит дополнительной опорой для лавки и подходит для размещения на нем комнатных растений.
Угловой диван дополнили креслом на деревянных ножках в тканевой обивке зеленого цвета и столиком гексагональной формы от российского бренда Archpole. Над диваном — необычный светильник на специальном кронштейне. Высоту светильника и угол падения света можно регулировать.
«Детская комната создавалась для будущего малыша. Для мамы мы предусмотрели диван с раскладным механизмом, а до появления малыша на нем смогут разместиться гости.
У окна организовали своего рода лаунж-зону: небольшая банкетка состоит из отдельных модулей, которые можно вытаскивать. Когда ребенок вырастет, эти модули можно будет убрать, а на их место поставить письменный стол», — говорит Оксана Муратова.
Планировка
Бренды, представленные в проекте
Прихожая
Отделка: Beckers
Напольное покрытие: Ragno
Свет: Latitude
Кухня
Отделка: Beckers, Mainzu
Напольное покрытие: Ragno
Су-1
Отделка: Beckers, Valmori
Напольное покрытие: Ragno
Су-2
Отделка: Serenissima Cir, Lea Ceramiche
Напольное покрытие: Serenissima Cir
Гостиная + лоджия
Отделка: Beckers, Finex
Напольное покрытие: Finex, Equipe
Мебель: Archpole, Cosmorelax
Спальня + лоджия
Отделка: Beckers
Напольное покрытие: Finex, Codicer 95
Мебель: Archpole, Cosmorelax, The Idea
Свет: Gramercy Home
Детская
Отделка: Beckers
Напольное покрытие: Finex
Мебель: Archpole, Cosmorelax, ИКЕА
Тип дома 44т планировки с габаритами.
Его начали строить еще в 1997г. И по настоящее время. Имеет собственную модификацию, которая отличается от нее только этажностью — это серия П-44Т / 17.
Дом П-44Т панельный, состоит из угловой и обычной секций по четыре квартиры, из которых 1-комнатная квартира жилой площадью 19 м 2, кухня 7-9 м 2, санузлы совмещены; 2-комнатная квартира — 30-34 м 2, кухня — 8-13 м 2, санузлы раздельные; 3-комнатная квартира — 44-54 м 2, кухня — 10-13 м 2, санузел тоже раздельный.Все комнаты в квартирах домов серии П-44Т изолированы. Во всех квартирах есть эркеры и просторные лоджии. Внутренние стены состоят из сборных железобетонных панелей толщиной 16 см и 18 см. Внешние стеновые трехслойные навесные панели с пенополистирольным утеплителем и с теплоотражающей металлизированной пленкой внутри утеплителя, общая толщина 30 см; с лицевой стороны облицованы плиткой под кирпич, начиная со второго этажа.
Перегородки из многих материалов: пазогребневые или пенобетонные блоки, гипсокартонные листы по металлическому каркасу, гипсокартонные прокатные панели, но чаще всего гипсобетонные, все они одинаковой толщины — 8 см.Перекрытия — железобетонные плиты толщиной 14 см.
Серия жилых домов П-44Т имеет различные недостатки, такие как узкое помещение в двухкомнатных линейных квартирах (с окнами на одну сторону), швы между панелями требуют дополнительной зачистки (иначе будет холодно) . Возможности перепланировки в этом типе дома очень серьезно ограничены. Практически все стены несущие. Однако сохраняются следующие возможности для допустимой перепланировки без отрицательного воздействия на несущие конструкции:
- В трехкомнатных квартирах перегородка между большой комнатой и коридором ненесущая.
- Сантехнический блок сделан из гипса и может быть демонтирован и / или модифицирован.
- В домах после 2007 года постройки в несущих панелях между кухней и комнатой в части квартир есть специальная ниша для изготовления дверного проема («вафли»), который можно демонтировать.

Тем не менее, эта серия имеет ряд преимуществ: в планировки добавили эркеры, медную электропроводку, естественную вытяжную вентиляцию, горячее водоснабжение с переливом, внешний вид приобрел особый цвет — красный с песком, эркеры и лоджии покрашен в белый цвет.Для проживания в домах серии П-44Т это бывает, имеется мансардный этаж. Появилась современная система безопасности, которая реагирует на открытие офисных помещений, затопление или угрозу возгорания.
В каждом подъезде — один пассажирский и один грузопассажирский лифт, в 20-25-этажных секциях (подъездах) — по 2 пассажирских и пассажирских. Количество подъездов от 1 до 8. Лестница бездымная, противопожарного балкона нет. Мусоропровод находится на лестнице, с загрузочным клапаном на участке.
Срок службы дома серии П-44Т составляет около 100 лет, поэтому надеяться на снос в ближайшее время не стоит.
- Производитель: ДСК-1
- Конструкторы: МНИИТЭП
Дома серии П44Т отличаются улучшенной планировкой квартир, более эффективной тепло- и шумоизоляцией наружных стеновых панелей, а также наличием современных инженерных систем и систем безопасности (отопительные приборы с терморегуляторами, медная разводка, технология замкнутых стыков ( шов), международные стандарты капитальной и огнестойкости (1-й класс), современная система безопасности (реагирование на открытие дверей подвала, распределительного щита, чердака, шахты лифта; система оповещения о затоплении и пожаре). Серия п44т состоит из 14-17-этажных прямых и угловых блочных секций с различными вариантами кровли: с мансардой, с плоской крышей, с «покатыми» фризами, что позволяет собирать здания различной конфигурации и силуэта. Они могут иметь высоту 9-25 этажей. Новым решением фасадов серии стало сочетание панелей, облицованных матовой керамической плиткой под кирпич (ярко-оранжевой, реже песочной), с окрашенными поверхностями эркеров, лоджий, карнизов и других архитектурных деталей.
На концах секций запроектированы треугольные эркеры. В проекте предусмотрено несколько вариантов остекления балконов и лоджий северного фасада. Серия П44Т стала одной из самых популярных для строительства муниципального жилья в Москве с объемом строительства более 1 миллиона квадратных метров. м в год.
Усовершенствованы системы отопления, водоснабжения и вентиляции домов по сравнению с серией П44. Стояк Веншахта, который находился на кухне в P44, был перенесен в коридор возле P44T (рядом с ванной и туалетом).
Дом П44Т состоит из угловой и рядной секций по четыре квартиры, аналогично базовой серии П44. Напротив, на кухнях двух- и трехкомнатных квартир П-44Т большие эркеры трапециевидной формы. При этом кухни односторонних двухкомнатных квартир, а также жилые комнаты парадных жилетов (2-х и 3-х комнатные) имеют треугольные полуокна. Увеличена и площадь квартир.
Следует понимать, что П-44Т — это, по сути, серия серийных — есть проекты домов П-44ТМ или ТМ-25, а также П-44К, которые имеют ряд отличий в компоновке.
квартир, а также планировка типовых этажей.Кроме того, иногда строятся жилые дома, состоящие из нескольких секций, например, две секции П-44Т и четыре секции П-44К. Возможны и другие комбинации конфигураций разделов.
Типовые планировки квартир домов этой серии представлены ниже.
Чаще всего жилой первый этаж. Высота потолков в доме 2,70 м. Лифты в доме: у пассажира грузоподъемность 400 кг, у груза 630 кг.В доме на 20 и 25 этажах один пассажирский и два грузовых лифта (модификация П-44Т / 25).
Застекленные лоджии начинаются на втором или третьем этаже. В двух- или трехкомнатной квартире также есть экеры и полуокна. На одном этаже четыре квартиры.
Строительство таких домов началось в 1997 году, и сегодня они успешно возводятся.
Дома типа П-44Т строятся, как и в новых микрорайонах Москвы большой застройки: Некрасовка, Новое Кожухово, Жулебино, Новокосино, Митино, Люблино, Марьинский парк, Южный и Северное Бутово, Ходынка и р. деревня.Северный. Также строятся дома в районах старой Москвы, где сносят пятиэтажки и ветхие дома: Южное Чертаново, Нагатино, Перово, Зюзино, Очаково, Солнцево, Кунцево, Черёмушки, Фили, Ховрино, Бескудниково, Коптево, Дегунино, Медведково, Свиблово, Юрлово, Измайлово, Алексеево, Лефортово, Зеленоград, Щукино, ул.
Нижний Новгород, ул. 1905, ул. Борисовские пруды. Дома типа П-44Т строятся и в других районах Москвы (в том числе в ЦАО).
Новостройки П-44Т строятся не только в Москве, но и в городах Подмосковья. например: Балашиха, Железнодорожный, Люберцы, Лобня, Красногорск, Реутов, Москва, Котельники, Щербинка, Одинцово, Химки, в селе Медвежьи Озёра и село Голубое, тоже на дереве. Пихтино и село Брехово, а также в ЖК Бутово-Парк.
В Москве и Подмосковье построено около 600 таких домов. — около 200 (в том числе строящиеся).По заявлению производителя срок эксплуатации такого дома — 100 лет.
Однокомнатная квартира: жилая площадь может достигать 19 квадратных метров. м, площадь кухни до 8,4 кв. м. но не менее 7,4 (в доме 25 этажей кухня около 9 кв.м), общая площадь может достигать 40 кв.м. м. но не менее 37 кв. м
Двухкомнатная квартира: жилая площадь может достигать 34 квадратных метров. м. но не менее 19, площадь кухни до 13.2 кв. м. но не менее 8,3 кв. м. (в доме 25 этажей кухня от 12,8 до 13,8 кв.
м), общая площадь до 64 кв.м. м. но не менее 52 кв. м
Трехкомнатная квартира: жилая площадь может достигать 54 квадратных метров. м. но не менее 44 кв. м., площадь кухни до 13,2 кв. м. но не менее 10 кв. м., общая площадь достигает 84 кв. м. но не менее 70 кв. м
В домах серии П-44Т все комнаты изолированные.Раздельные санузлы делаются только в двух- и трехкомнатных квартирах, в однокомнатной квартире совмещен санузел. Ванны размером 1,7 м (стандартные).
Лестницы гладкие, в домах 20 и 25 этажей (тип П-44Т / 25) есть общие балконы. На всех этажах имеется желоб с загрузочным клапаном.
Плита электрическая. Приточно-вытяжная вентиляция и вентиляционные установки в коридоре и санузле.
Наружные стены: трехслойные, толщиной 30 см, панели из железобетона (теплоизоляция таких стен равняется кирпичу толщиной 90 см по заявлению производителя).Межкомнатные и межкомнатные перегородки — железобетонные панели толщиной 16-18см. Перегородки из гипсокартона толщиной 8 см.
В комнате крупногабаритные потолки, плиты железобетонные толщиной 14 см.
Продольные межквартирные несущие стены (в торцевых квартирах, в том числе внутренние). Все стены (межбалконные, межквартирные и межкомнатные) относятся к поперечной несущей.
Виды секций: рядовые (рядные, П-44-1), торцевые и угловые (поворотные). Есть два входа в подъезд с электрощита.
В подъезде семь ступенек: ширина одной ступени (шаг — расстояние между двумя несущими стенами) составляет 300 сантиметров (в трех центральных пролетах секции), а на остальных участках — 360 сантиметров.
Цветовые варианты наружных стен могут быть: песочный, темно-оранжевый и красный. Первые этажи могут быть: белые или серые с отделкой под камень.
Кровля из плоской черепицы BRAAS DSC1. Над верхним (последним) жилым этажом находится технический этаж.
Отличительная черта дома типа П-44Т от более устаревшего типа П-44 (построенных с 1979 по 2000 год) — более высокая теплоизоляция, большая кухня за счет выноса вентиляционного канала в помещение.
коридора, а отделка наружных стен кирпичом и эркером.
Также к достоинствам можно отнести: медную разводку, терморегулируемые отопительные приборы, первые классы мировых стандартов по капитальной и огнестойкости, подачу горячей воды с переливом, быстрое строительство (пол за три дня).
Но есть и недостатки у домов этой серии: качество монтажа некоторых элементов наружных стен в отдельно стоящих домах, в двухкомнатных квартирах (линейки, с односторонними окнами), узкое малогабаритное помещение.
В некоторых домах типа П-44Т можно купить квартиру с муниципальной отделкой.
На улице Маршала Василевского в 1997 году был построен первый жилой дом типа П-44Т. На набережной Яузы Рубцовского района из блоков секций П-44Т и П-44М построен один из самых ярких многоэтажных домов Москвы.На стандартной базе типа П-44Т в 2005 году были созданы типовые блоки — секции из типа П-44К , где на одну ступень меньше в каждой секции (6 ступеней вместо семи), конечно только в однокомнатной.
и двухкомнатные квартиры. На сегодняшний день эти виды активнее застраиваются на МКАД.
Ниже — другие фото и планировки квартир этой серии (нажмите на фото для увеличения и дополнительной информации).
В современном городском строительстве наиболее распространенной является компоновка П44Т, имеющая ряд безусловных преимуществ.Еще в семидесятые годы началось строительство новых домов серии П44 по типовым проектам. Фактически, это был первый шаг к дальнейшему развитию и внедрению более современных технологий строительства и планирования жилого пространства.
Особенности компоновки P44T
P44T — компоновка с размерами, отвечающими требованиям современности, предлагает около десяти решений. Разработаны варианты жилых секций для обычных и угловых квартир.Данная планировочная модель применяется для жилых многоэтажных домов высотой от 9 до 25 этажей. Для комфортного подъема жителей и мебели на нужный этаж предусмотрено как минимум два лифта: пассажирский и грузовой.
Современные планировочные идеи
Основная идея планировки P44T — максимальное использование пространства. В этом контексте можно привести пример удачного инженерного решения, позволившего увеличить площадь кухни. Столь важные квадратные метры кухни для каждой хозяйки высвободились за счет размещения в коридоре вентиляционного канала.P44T — это планировка с размерами, предполагающими высоту комнаты 2,7 м, что обеспечивает комфорт и хороший доступ дневного света в квартиры. Современные планировочные идеи сделали возможным использование чердачных помещений. На планировке квартиры П44Т с увеличением шага поперечных стен до 4,2 м, что дает возможность отлично благоустроить помещение. Часто их совмещают с обычным этажом, в результате получается двухэтажная квартира.
Преимущества P44T
Планировка дома P44T с размерами внутренних потолков 0.14 м и 0,18 м надежны и имеют длительный срок службы. Износостойкость и стойкость наружных стен к внешним воздействиям обеспечивает отделка керамической плиткой толщиной 0,30 м, имитирующей кирпич, который прочно крепится к фасаду.
Использование качественных стеклопакетов гарантирует хорошую теплоизоляцию, защиту от шума и создает комфорт. Оснащение различными современными системами управления дает гарантию безопасности в случае пожара и в случае угрозы затопления. Также в этом типе устанавливаются датчики открывания дверей технических помещений и электросчетчики.P44T — компоновка с размерами, соответствующими типовым нормам этих проектов, предполагает прокладку электрических проводов внутри панелей. Это повышает безопасность эксплуатации и защиту самих проводов при любых ремонтных или строительных работах.
Очень важными преимуществами дома с планировкой П44Т являются короткие сроки строительства и длительный срок эксплуатации. Гарантированный специалистами срок службы более ста лет.
Планировка П44Т с размерами стен намного больше, чем в строящихся домах прошлых лет, обеспечивает дополнительную конструктивную надежность, лучшую звукоизоляцию квартир и хорошую теплоизоляцию помещений.При строительстве используется качественный тяжелый бетон, отвечающий за повышенную износостойкость.
Недостатки P44T
Наряду с рядом преимуществ можно назвать некоторые недостатки, которые встречаются в домах этого типа. Одна из них — неровности стен и пола. Устранить такой недостаток несложно, выполнив центровку и обеспечив дополнительную звукоизоляцию.
Технологические отличия планировки П44Т 25
Планировка П44Т 25 с указанными ниже размерами представляет собой современный улучшенный вариант планировки, применяемый для жилых домов высотой 25 этажей с увеличением площади квартир .У этого ширина шага стен в сечении больше, а трехкомнатные квартиры оборудованы дополнительным санузлом. Технологические отличия П44Т 25 заключаются в увеличенной этажности с увеличенным до трех лифтов грузоподъемностью двух из них 630 кг и одного — 400 кг. Площадь кухни увеличена до 9 кв. м в однокомнатной; до 15,9 кв.м в двухкомнатном линейном; до 13,8 кв.м — в трехкомнатных и больших комнатах.Общая площадь 1- / 2- / 3-комнатных квартир составляет 37,4-38,8 / 51,7-63,4 / 77-84,6 кв.
м соответственно.
Эркеры в домах П44Т
П44Т — планировка с указанными выше размерами, все чаще предусматривает использование эркеров, делая квартиры не только эстетически более привлекательными, но и увеличивая площадь помещения. Часть оконного пространства выполняется на внешнем фасаде в виде выступа трапеции или другой формы, тем самым увеличивая объем помещения.Чаще всего этот метод применяется на кухнях. Благодаря эркерам комната получает дополнительное освещение, увеличенную площадь, а фасад дома выглядит более привлекательно. Выступы могут быть различной формы: прямоугольной, треугольной, многоугольной или закругленной. Можно использовать и оформить эркер как отдельную зону, тогда он отделяется от основного помещения барной стойкой или визуальной перегородкой, например ширмой. Укороченный вариант — полуокно также пользуется заслуженной популярностью.
Дизайнерские решения для кухонь или комнат с эркером могут быть намного интереснее обычного.
P44T — планировка с размерами, идеально подходящими для комфортной жизни, на сегодняшний день является наиболее распространенной в многоэтажных жилых домах. Архитекторы и дизайнеры, которые работали над решением задач максимального удобства квартир, не только реализовали их в проекте, но и сделали планировку интересной и оригинальной.
Эти размеры были сняты мной лично в моей квартире на этапе завершения монтажа дома.Что касается размеров, то стоит отметить, что чем выше этаж, тем больше площадь квартиры, так как стены на верхних этажах темнее. В моем случае площадь квартиры больше 0,5 квадратных метров от площади, указанной в предварительном договоре купли-продажи квартиры и это приятнее, чем получение минуса в районе квартиры, расположенной на одном из нижних этажей.
Теперь перейдем непосредственно к планировке квартиры и сравним ее с другим предложением трехкомнатной квартиры в доме серии 111-М от компании ГВСУ.Размеры трехкомнатной квартиры представлены на следующем рисунке:
Сравнение 3-х комнатных квартир серий П-44Т и 111-М
Площадь этих квартир практически одинакова — кому больше нравится.
Это дело вкуса и потребностей, но компоновка П-44Т мне понравилась. Почему?
1. Расположение санузла.
В П44-Т санузел находится в коридоре возле прихожей, а в 111-м между двумя комнатами.Во втором варианте в комнатах возле ванной всегда будет слышен звук воды, открытия и закрытия дверей, что будет нарушать тишину в этих комнатах.
2. Кухня.
В P44-t и 111-M кухни имеют схожие площади, но в первом варианте кухня имеет эркер. Благодаря эркеру на кухне всегда будет светло, кухня будет выглядеть красивее.
3. Коридор.
В П-44т коридор шире и короче, что позволит установить в нем хороший шкаф для несезонной одежды и прочего, а в 111-м коридоре узкий и длинный, что не позволяет принимать преимущество своей площади.
4 комнаты
В П-44Т мне понравилось то, что комнаты шире, что дает возможность более полно использовать их площади, а в 111-М комнаты достаточно узкие, что не позволит разместить мебель на обоих стороны комнат.
Если есть вопросы, то задавайте их в комментариях — отвечу!
Макет П-44Т с габаритами
Планы квартир в П44Т с вариантами перепланировки
Планы двухкомнатных квартир серии П 44т
Жилет двухсекционный
Обычно имеет площадь около 60-64 кв.м. На кухне большой эркер, а в каждой из комнат есть просторный балкон. По сути, это та же трешка, только с «прокусанной» одиннадцатиметровой комнатой и прилегающим к ней участком коридора.
Линейный сдвоенный П-44Т
Площадь односторонних двухкомнатных квартир колеблется в районе 52 кв.м (51-53 кв.м). У них есть небольшие коридоры и балконы.
Однокомнатная квартира П-44 Т
Площадь однушки в П-44Т составляет порядка 36-38 кв.м. В них есть небольшой балкон и совмещенный санузел.
Трехкомнатные квартиры П-44Т
Наибольший разброс наблюдается в площадях и конфигурациях трехкомнатных квартир серии П-44Т (примерно от 73 до 86 метров).
Также есть много планировочных решений. Кухни в угловых секциях не имеют эркеров, а их площадь обычно не превышает 10 метров. При этом 3-х комнатные квартиры в рядовой и торцевой секциях П-44Т могут похвастаться кухнями с эркером общей площадью от 12 до 14 кв.м.
Трешка с эркером в комнате (торцевая квартира п44т)
Планировка дома 44т. Типовая перепланировка квартир в П44Т дома
Посетим сегодня 3-х комнатную квартиру, Панельный дом серии П-44Т от застройщика DSC-1
Квартира получилась хорошей и просторной, но дизайнеры не сообразили дизайн и планировка оказалась похожей другим аналогичным трехкомнатным квартирам панельных домов.Все комнаты изолированы друг от друга. На кухню пристроили большую переправу, а в комнате угловых квартир присутствует треугольный эркер. В двух комнатах есть балконы.
Рассмотрим планировку трехкомнатной квартиры следующих размеров:
Комната с балконной обувью 17,8 кв.
м. (на схеме № 1)
Номер без балкона 14,1 кв.м. (на схеме № 2)
Номер с балконом Утюг 11 кв.м. (на схеме № 3)
Кухня с большим байером 12.9 кв.м. (в схеме №4)
Коридор с прихожей 14,6 кв.м. (на схеме № 7)
Жилая площадь 42.9 кв.м
Единая форма квартиры без балкона 70,4 кВ, м
Схема планировки трехкомнатной квартиры П-44Т с габаритами
Открываем входную дверь и попадаем в пребанкир. Есть стена с находкой, в которой изначально была сделана небольшая арка. Справа за дверью есть небольшое пространство, где поместится небольшая гардеробная или сумка для обуви.
В этом варианте мы видим пример такой обувной гильзы.
Также это место может занять красивое большое зеркало в полный рост.
Проходим вперед и попадаем в самый центр коридора. Встречаем три двери. Слева большая двойная дверь ведет в комнату площадью 11 кв.м. и балконная обувь. И две соседние двери — комнаты.
Справа самая большая комната площадью 17,8 кв.м. с балконным багажником, а слева маленькая комната 14 кв.м. без балкона.
Несколько интересных идей в дизайне прихожей трехкомнатной квартиры. На фото видно, что в ближнем номере комнаты выходила дверь купе.
Еще один интересный вариант прихожей. В арке было смонтировано освещение.
И вот, в правой части синего коридора, в оформлении применены колонны с подсветкой.
Расстановка мебели в прихожей
Если в комнатах больше места и не захламляют шкафы комнаты, для этих целей подойдет прихожая.
На длинной стене будет установлен большой шкаф.
Кто совсем не перешел к электронным книгам, а собирает домой свою домашнюю библиотеку, интересным решением будет, если в коридоре разместить полки для книг.
В углу поместятся угловые полочки.
Номер с балконом, утюг
По коридору заходим в комнату с большим дверным проемом.
Обычно это помещение используют под гостиную или холл.Комната не очень большая, но квадратная.
А если снять оконные рамы и демонтировать часть подоконника, можно расширить комнату и соединить вместе с балконом.
Не всегда хватает жильцам трех комнат. Часто на балконах устраивают рабочие кабинеты. Оказывается, они в такой ситуации, когда дорог каждый квадратный метр.
Разворачиваюсь спиной на балкон и наблюдаем две межкомнатные двери, в типовой планировке конечного ремонта от застройщика DSC-1
Можно немного обыграть дверной проем.Делаем небольшую арку и меняем обычные двери на раздвижные.
Две двери съедают много места. А если сделать одностворчатую дверь, то можно поставить угловой шкаф в угол комнаты.
А иногда демонтируют по всей стене. И получается, что вместо комнаты просторная комната, соединяющаяся в одно целое с коридором.
Большой номер с балконной обувью
Стандартный большой номер с балконом.
Размер на длинной стене 5.56 кв.м и короче 3,22 кв.м. Он может быть рассчитан как на родительскую, так и на детскую.
Если балкон утеплен, стены можно оклеить обоями. Выведите розетку на балкон и повесьте лампы для освещения.
Стены, которые мы помним еще с советских времен, становятся все менее популярными. Вместо этого в дизайне и интерьерах квартиры часто появляются длинные платья.
Но цветы были в моде, поэтому до сих пор украшают наши квартиры.
Номер без балкона
В третьей комнате балкона нет. Большое и широкое окно. Площадь одной стены 4,34 кв.м. и на стене с окном 3,22 кв.м.
Хорошее спальное место. Плотные темные шторы, помогают сгореть от утреннего солнца и в выходной день спать на мягкой постели.
Большие картины на стене оригинально смотрят на кровать.
Шкаф в комнате лишним не будет.
Санузел совмещенный в 3-х комнатной квартире
Выходим из комнаты и идем на кухню.
По пути в коридоре попадаем на глазок двери в ванне и туалете, а в правом коридоре пусто, но очень удобное кабинетное пространство.
Макет П-44Т с габаритами
Планировка квартиры п44т с возможностью перепланировки
Планировка трехкомнатных квартир серии П 44Т
Дозирующая шкала
Обычно бывает площадью около 60-64 кв.м. На кухне большой эркер, а в каждой из комнат просторный балкон. По сути, это та же трешка, только с «герметичной» одиннадцатиметровой прямой комнатой и прилегающей к участку коридором.
Линейный циферблат П-44Т
Площадь односторонних трехкомнатных квартир колеблется в районе 52 кв. М (51-53 кв. М). Это небольшие коридоры и балконы.
Двухкомнатная квартира П-44 Т
Площадь Одера в П-44Т составляет порядка 36-38 кв.м. В них есть небольшой балкон и совмещенный санузел.
Трехкомнатные апартаменты П-44Т
По площадям и конфигурациям трехкомнатных квартир в серии П-44Т наблюдается наибольший разброс (примерно от 73 до 86 метров). Планировочных решений Там тоже много. Кухни в угловых секциях трешки не имеют эркеров, а их площадь обычно не превышает 10 метров. При этом 3-х комнатные квартиры в обычной и конечной частях П-44Т могут похвастаться кухнями с эркером и общей площадью от 12 до 14 кв.м.
ТРИКА С ЭРКЕРОМ В КОМНАТЕ (ФАКТ FACE P44T)
- Производитель: DSC-1
- Конструкторы: МНИИТП

Серия П44Т состоит из 14-17-этажных прямых и угловых блочных секций с различными вариантами кровли: с мансардным выводом, с плоской крышей, с «наклонными» фризами, что позволяет составлять здания различной конфигурации и силуэта. Может иметь высоту 9-25 этажей. Новым в решении фасадов серии стало сочетание панелей, облицованных матовой керамической плиткой «под кирпич» (ярко-оранжевый, реже песочный), с окрашенными поверхностями эркеров, лоджий, карнизов и других архитектурных деталей.В торцах секций запроектированы эркеры треугольной формы. В проекте предусмотрено несколько вариантов остекления балконов и лоджий на северном фасаде. Серия П44Т стала одной из основных для строительства муниципального жилья в Москве строительной мощностью более 1 миллиона квадратных метров. м. в год.
Улучшенные системы отопления, водоснабжения и вентиляции домов по сравнению с серией П44. Стояк Веншахца, который в П44 находился на кухне, перенесен в коридор (рядом с ванной и туалетом).
Дом П44Т состоит из угловой и рядной секций по четыре квартиры, аналогично базовой серии П44.
В отличие от нее, на кухнях двух- и трехкомнатных квартир П-44Т есть большие эркеры трапециевидной формы. При этом кухня односторонняя двухосная, а также гостиная (2х и 3х комнатная) имеют треугольные полукруглые стойки. Увеличена и площадь квартир.
Следует понимать, что П-44Т, по сути, является группой серии — есть и применяются проекты домов П-44ТМ или ТМ-25, а также П-44К, которые имеют ряд различия в планировке квартир, а также в планировке типовых этажей.Более того, иногда жилые дома устраивают из нескольких вариантов секций, например, две секции П-44Т и четыре секции П-44К. Возможны и другие варианты совмещения секций.
Типовая планировка квартир домов этой серии представлена ниже.
Чаще всего жилой первый этаж. Высота потолков в доме 2,70 м. Лифты в доме: пассажирский имеет грузоподъемность 400 кг, а грузовой — 630 кг.В доме на 20 и 25 этажи один пассажирский и два грузовых лифта (модификация П-44Т / 25).
Застекленные лоджии начинаются со второго или третьего этажа.
В двух или трехкомнатной квартире также есть эккеры и полусекверы. На одном этаже четыре квартиры.
Строительство таких домов началось с 1997 года и успешно возводится сегодня.
Дома типа П-44Т строятся, как и в новых подмосковных районах крупных застроек, таких как: Некрасовка, Новая Кожа, Жулебино, Новокосино, Митино, Люблин, Марьинский парк, Южное и Северное Бутово, Ходянка и др. Поз.Северный. Также построены в старом Подмосковье, где сносят пятиэтажки и ветхие дома, это: Южное Чертаново, Нагатино, Перово, Зюзино, Очаково, Солнцево, Кунцево, Черремушки, Фили, Ховрино, Бескудниково, Коптево, Дегунино, Медведково, Свиблово, Юрлово, Измайлово, Алексеево, Лефортово, Зеленоград, Щукино, ул. Нижний Новгород, ул. 1905, ул. Борисовский пруд. Дома типа П-44Т строятся и в других районах Москвы (в том числе в Средней Азии).
Новостройки Н-44Т строятся не только в Москве, но и в городах Подмосковья.Например: Балашиха, Железная дорога, Люберцы, Лобня, Красногорск, Реутов, Москва, Котельники, Щербинка, Одинцово, Химки, в П.
Медвежьих озерах и р. Синий, тоже на деревьях. Пыхино и дер. Брихово, и в ЖК «Бутовский парк».
В Москве таких домов около 600, да и в Подмосковье. — Около 200 (даны в стадии строительства). По заявлению производителя, срок эксплуатации такого дома составляет 100 лет.
Двухкомнатная квартира: жилая площадь может достигать 19 квадратных метров.м, площадь кухни до 8,4 кв. м. Но не менее 7,4 (в доме на 25 этажах кухня около 9 кв. М) общая площадь может достигать 40 кв. м. Но не менее 37 кв. м.
Двухкомнатная квартира: Жилая площадь может достигать 34 квадратных метров. м. Но не менее 19, площадь кухни до 13,2 кв. м. Но не менее 8,3 кв. м. (в доме на 25 этажей кухня от 12,8 до 13,8 кв. м), общая площадь достигает 64 кв.м. Но не менее 52 кв. м.
Трехкомнатная квартира: Жилая площадь может достигать 54 квадратных метров. м. Но не менее 44 кв. м., площадь кухни до 13,2 кв. м. Но не менее 10 кв. м., общая площадь достигает 84 кв. м. Но не менее 70 кв. м.
Комнаты в домах серии П — 44Т, все изолированные.
Раздельные санузлы делаются только в двух- и трехкомнатных квартирах, в однокомнатных квартирах санузел совмещен.Размер ванны 1,7 м. (Стандарт).
Лестница без электроснабжения, в домах на 20 и 25 этажей (вид P-44T / 25) Есть общие балконы. Мусоропровод с загрузочным клапаном имеется на всех этажах.
Плита кухонная электрическая. Естественная вытяжная вентиляция и форточки в коридоре и санузле.
Наружные стены: трехслойные, толщиной 30 см, панели из железобетона (теплоизоляция таких стен равняется кирпичу толщиной 90 см по данным производителя). Межкомнатная и межкомнатная опора — панели из железобетона толщиной 16-18 см.Перегородки из гипсокартона толщиной 8 см. Крупногабаритные перекрытия по помещению, плиты из железобетона толщиной 14 см.
Продольные межкомнатные несущие стены (в торцевых квартирах, в том числе межкомнатные). Все стены (межсетевые, межсетевые и внутренние) имеют поперечную опору.
Типы секций: рядные (рядные, П-44-1), концевые и угловые (поворотные).
В подъезде с электротельфером два входа.
Ступеньки в подъезде: семь, ширина одной ступеньки (ступенька — расстояние между двумя несущими стенами) составляет 300 сантиметров (в трех центральных секциях), в остальных секциях 360 сантиметров.
Варианты цвета наружных стен: песочный, темно-оранжевый и красный. Первые этажи могут быть: белые или серые с отделкой «под камень».
Кровля из Braas DSK1 плоской черепицы. Над верхним (последним) жилым этажом находится технический этаж.
Отличительная черта дома формы П-44Т от более устаревшей разновидности П-44 (построенных с 1979 по 2000 год) отличается: более высокая теплоизоляция, более увеличенная кухня, за счет удаления вентиляции. коробка в коридоре, отделка наружных стен под кирпич и эркерс.
Также к достоинствам можно отнести: медную разводку, отопительные приборы с регулировкой температуры, первые классы мировых стандартов по капитальной вместимости и огнестойкости, подача горячей воды с верхним переливом, быстрое строительство (пол за три дня).
Но есть и недостатки у такой серии: качество монтажа тех или иных элементов наружных стен в отдельно стоящих домах, в двухкомнатных квартирах (норм, с односторонними окнами), узкой маленькой комнате.
В некоторых домах типа П-44Т можно купить квартиру с муниципальной отделкой.
на ул. Маршала Василевского в 1997 году был возведен первый дом от типа П-44Т. На набережной Яузы Рубцовского района из блоков секций П-44Т и П-44М был построен один из самых ярких уличных домов Москвы. . По типовой базе вида П-44Т в 2005 году были созданы типовые блоки — сечения из вида П-44К. , где на одну ступеньку меньше в каждой секции (6 ступеней против семи), конечно только в однокомнатных и двухкомнатных квартирах.На сегодняшний день все активнее такие виды строят на МКАД.
Ниже больше фото и планировка квартир этой серии (нажмите на фото для увеличения и дополнения. Информация).
Материал стены: Панель с облицовкой «под кирпич»
Количество секций (входов): от 1.
Иногда несколько входов в одном корпусе являются блочными секциями серии П-44Т, а другие (центральные и / или угловые) — из блочные секции других серий: П-44К, П-44ТМ / 25 (ТМ-25)
Этажность: 9-25, наиболее распространенные варианты — 14, 17.Первый этаж чаще всего бывает жилым.
Высота потолков: 2,70 м.
Лифты: пассажирские 400 кг и грузопассажирские 630 кг, в 20-25-этажных секциях (подъездах) — 2 грузопассажирские и пассажирские (модификация получила название П-44Т / 25)
Балконы: Во всех квартирах, начиная с 2 — 3 этаж, застекленные лоджии, в 2-х и 3-х комнатных квартирах также эркеры и полуквартиры
Количество квартир на этаже: 4
Год постройки: с 1997г. время
Панельные дома Типовой серии П-44Т в Москве строились как в новых районах массовой застройки: Маринский парк, Люблин, Северное и Южное Бутово, Митино, Новокосино, Новое Кожухово, Жулебино, Некрасовка, пос.Север, Ходянка, а также в старых районах, где проводились массовые сносы пятиэтажек и ветхих домов: Ховрино, Коптево, Бескудниково, Дегунино, Свиблово, Медведково, Юрлово, Алексеево, Измайлово, Лефортово, Перово, Нагатино, Южный.
Чертаново, Зюзино, Злаки, Солнцево, Очаково, Кунцево, Фили, Щукино, Зеленоград, ул. 1905, ул. Борисовские пруды, Нижний Новгород ул. Также в ряде других районов (в том числе в ЦС) серии П-44 на дому
В Московской области строятся и строятся новостройки серии П-44Т в городах Железнодорожный, Балашиха (МКП). .1 мая, МКП. 22 «Парк Балашиха» и др.), Лобня, Красногорск, Люберцы, Москва, Котельники, Реутов (в т. Ч. МКР. Новокосино-2), Одинцово (в том числе Немчиновка), Химки, Щербинка, а также в пос. Медвежьи озера (Щелковский район), пос. Синий и дер. Брат (Солнечногорский р-н), дер. Пытино и ЖК «Бутово Парк» (Ленинский район)
Количество построенных домов в Москве: около 600, в Московской области — около 200 (в том числе строящихся). Серия П-44Т — самая распространенная в Москве среди всей современной типовой серии домов.Количество муниципальных домов, построенных для переселенцев из сносимого фонда молодых семей и др. — около 50%
Нормативный срок эксплуатации дома (по данным производителя) — 100 лет
Площадь 1-комнатных квартир: всего: 37-40 квадратные метры.
м., жилая: 19 кв. м., кухня: 7,4-8,4 кв. м. (в 25-этажной модификации — 9 кв. м)
Площадь 2-х комнатных квартир: общая: 52-64 кв. м., жилая: 32-34 кв. м., кухня: 8,3-13,2 кв. м. (в 25-этажной модификации — 12 кв.8-13,8 кв. м)
Площадь 3-х комнатных квартир: общая: 70-84 кв. м., жилая: 44-54 кв. м., кухня: 10-13,2 кв. м.
Все комнаты в квартирах домов серии П-44Т изолированные
Санузлы: в 1-комнатных квартирах — совмещенные, в 2-х и 3-х комнатных квартирах — раздельные, ванны: стандартные, длиной 160 см.
Лестница: Несложная, в секциях 20-25 этажей (П-44Т / 25) оборудованы общие балконы. Мусор: с загрузочным клапаном на каждом этаже
Тип кухонной плиты: электрическая.Вентиляция: Естественная вытяжка, форточки в ванной и коридоре
Стены: Наружные железобетонные трехслойные панели (бетон — утеплитель полистирол — бетон) общей толщиной 30 см (теплоизоляция которых, по заявлению производителя, составляет эквивалентно кирпичной стене толщиной 90 см.) Аварийные и внутренние несущие — железобетонные панели 16 и 18 см.
Перегородки — Гипсокартон толщиной 8 см. Перекрытие — крупногабаритные («по комнате») железобетонные плиты толщиной 14 см.
Несущие стены: Продольные домофоны (а также межкомнатные в торцевых квартирах, «растяжек») и поперечные все (эскарповидные, межкомнатные и межблочные)
Тип секций: торцевые, рядные (обычные, П-44-1) и поворотные. (угловой). Подъезд, в котором расположен электрощит, имеет вход с двух сторон
Количество ступеней в секции (входе): 7, ширина ступени (расстояние между двумя соседними вагонами): 300 см (в 3 центральных пролётах). каждой секции), 360 см (в остальном)
Варианты окраски наружных стен: темно-оранжевый, светло-рыжий, песочный, нижние этажи — серый с отделкой под камень, эркеры и полуприцепы — белый
Тип крыши: плоская с плиткой Braas DSK1.Технический этаж: над верхним жилым этажом
Отличительные особенности: Серия домов П-44Т отличается от своей предшественницы — серии П-44 (1979-2000 гг. Постройки) повышенной теплоизоляцией стен, увеличенными площадями кухонь.
за счет удаления вентиляционного бокса в коридоре, эркера, а также узнаваемой внешней отделки под кирпич
Другие преимущества: отопительные приборы с терморегуляторами, медная разводка, горячее водоснабжение с верхним переливом, мировые стандарты капитальной и огнестойкости ( 1 класс), стремительные темпы строительства (1 этаж за 3 дня): специалисты WWW не выявили ни одного случая долгосрочных домов этой серии
Недостатки: качество монтажа отдельных элементов наружных стен в некоторых случаях узкое Комната поменьше в 2-х комнатных квартирах «Норм» (с окнами на первую сторону)
Производитель: Московский домостроительный комбинат №1.1 (ДСК-1)
Конструктор: МНИИТП (Московский научно-исследовательский и проектный институт тиологии и экспериментального проектирования)
Конструктивные характеристики и внешний вид домов серии П-44Т серии П-44Т во многом аналогичны домам этой серии. , П-44ТМ, П-44К
Квартиры в новостройках серии П-44Т также можно приобрести с муниципальной отделкой
Первый дом серии П-44Т был построен в 1997 году по ул.
Маршал Василевский (Щукино). Один из самых узнаваемых в Москве — разноплановый жилой комплекс со шпилями на Рубцовской набережной Яузы (проект И-1774), построенный из блочных секций П-44Т и П-44М серии
В 2005 году на базе S- Типовой ряд 44Т разработан проект типовых блочных секций серии П-44К, где в каждой секции на 1 ступень меньше — 6 ступеней («6-модульная»), и, соответственно, только 1- и 2-комнатные квартиры. .В настоящее время в пределах МКАД более активна эта серия
Также разработана 5-модульная (5-ступенчатая версия П-44Т), где 1-комнатные квартиры и есть у всех так называемых студий с общ. Площадь 23-28 кв. м. В серийное производство 5-модульный (специалисты www.Site приняли условное название для него П-44-5М), пока не пошел
Рейтинг сайта образца серии П-44Т: 8,2 (по 10-балльной шкале)
Фото: www ..dsk1.ru, www.morton.ru
Серия панельных домов П-44Т — новое поколение популярной московской серии домов.Он самый распространенный современный типовой сериал в Москве.
В планировки добавлены эркеры, качественно улучшена внешняя отделка здания, добавлен мансардный этаж. Сериал был разработан в середине 1990-х годов. Год постройки: с 1997 г. по настоящее время. Всего было построено около 800 домов. Нормативный срок службы дома — 100 лет.
В Москве Дом типовой серии П-44Т в основном строится в районах массовой застройки: Измайлово, Лефортово, Перово, Нагатино, Южное Чертаново, Зюзино, Черремушки, Ховрино, Коптево, Берекидниково, Дегунино, Свиблово, Медведково, Юрлово, Алексеев, Солнцево, Очаково, Кунцево, Фили, Щукино, Зеленоград, а также на ул.1905, ул. Борисовские пруды и Нижегородская ул.
В Подмосковье Дома серии П-44Т построены в городах: Железная дорога, Балашиха, Лобня, Красногорск, Люберцы, Москва, Котельники, Реутов, Одинцово, Химки, Щербинка, а также в пос. Медвежьи озера (Щелковский район), пос. Синий и дер. Брат (Солнечногорский р-н), дер. Пыхино и ЖК «Бутово Парк» (Ленинский район).
Все комнаты в квартирах домов серии П-44Т изолированные.
Во всех квартирах предусмотрены эркеры и просторные лоджии. На каждой лестничной клетке имеется один пассажирский и один грузопассажирский лифт. В однокомнатных квартирах санузлы совмещены, в остальных — раздельные. Лестницы неясны, противопожарный балкон отсутствует.
Кухонная плита электрическая, вентиляция естественная вытяжная, на кухне и в ванной блоки. Мусор на лестнице, с загрузочным клапаном на участке.
Серия Дом П-44Т отличается от предшественницы (серии) повышенной теплоизоляцией стен, вентиляционным боксом в прихожей, застекленными лоджиями, эркерами и полузащитниками, а также узнаваемой внешней отделкой под кирпич. , для проживания в домах серии П-44Т предусмотрен мансардный этаж.
П-44Т, как и все остальные серии семейства, был разработан специально для. Первый дом серии П-44Т был построен в 1997 году по ул. Маршал Василевский (Щукино). «Визитная карточка» — разноплановый жилой комплекс на Рубцовской набережной Яузы (пр. А-1774) построен из блочных секций серии П-44Т и.
Конструктивные характеристики и внешний вид домов серии П — 44Т во многом аналогичны домам серии ,,.
В 2005 году на базе серии С-П-44Т была разработана эскизная модель блочных секций серии, где в каждой секции на одну ступень меньше (6 ступенек), а присутствуют только одно- и двухкомнатные квартиры. В настоящее время в пределах МКАД эта серия более активна.
Подробные характеристики серии
| Переходы | из 1. |
| Этаж | от 9 до 25, наиболее распространенные варианты — 14, 17. |
| Высота потолка | 2.70 м. |
| Подъемники | Один пассажирский (400кг.) И один грузопассажирский (630кг.). |
| Балконы | Застекленные лоджии во всех квартирах, кроме первого этажа. Эркеры и полуфабрики во всех трехкомнатных и трехкомнатных квартирах. |
| Квартиры на этаже | 4 |
| Годы постройки | с 1997 по настоящее время |
| Построенных домов | Москва: около 600, Московская область: около 200 (в том числе строящиеся). ![]() |
| Площадь квартир | 1-комнатная квартира Общая: 37-40 м², жилая: 19 м², кухня: 7,4-8,4 м² 2-комнатная квартира Общая: 52-64 м², жилая: 32-34 м², кухня : 8,3-13,2 м² 3-комнатная квартира Общая: 70-84 м², жилая: 44-54 м², кухня: 10-13,2 м² |
| Санузлов | В однокомнатных квартирах совмещены, в двух- и трехкомнатных — раздельные. Ванны: Стандарт |
| Лестница | Лестница, с выходом на пожарный балкон. |
| Мусоропровод | С загрузочным клапаном на каждом этаже. |
| Вентиляция | Естественная и принудительная вытяжка на кухне и в ванной. |
| Стены и перекрытия | Наружные стены — железобетонные трехслойные панели толщиной 30 см. Внутренний домофон и межкомнатные — железобетонные панели толщиной 16 и 18 см. Перегородка штукатурная 8 см. Перекрытие — железобетонные плиты.14 см толщиной |
| Несущие стены | Продольные межсторонние (а также внутренние в торцевых квартирах) и поперечные (межкомнатные, межкомнатные и межблочные). |
| Цвета и облицовка | Красный с песочными, эркерами и лоджиями — белый Облицовка «под кирпич», нижние этажи — облицовка «под камень» |
| Тип кровли | Плоскогубка с черепицей. Технический этаж: выше верхнего жилого этажа.Возможность обустройства мансардной квартиры. |
| Сан | Отопительные приборы с терморегуляторами, медная разводка, горячее водоснабжение с верхним переливом, быстрые темпы строительства (1 этаж за 3 дня). |
| недостатки | Качество монтажа отдельных элементов наружных стен в некоторых корпусах, узкое помещение в двухкомнатных линейных квартирах (с окнами на первую сторону) |
| Производитель | Московский домостроительный комбинат №1 (ДСК-1) |
| Конструктор | МНИИТЭП |
N 44 3 yataq otağının evi.P44t seriyası. İncəsənət, qonaq otağı, yataq otağı, mətbəx, vanna otağı
P-44T ölçüləri ilə макет
Yenidənqurma seçimləri ilə P44T-də mənzillərin planlaşdırılması
P 44T seriyasının iki otaqlı mənzillərini planlaşdırmaq
Paylamaq
Adətən təxminən 60-64 кв.м olan bir sahə var. Mətbəxdə böyük bir erker var və geniş eyvandakı otaqların hər biri var.Əslində, bu yalnız «möhürləm» на бир дюз отагы вə dəhlizin saytına bitişik olan eyni treshka.
Xətti yıın p-44t
Birtərəfli iki otaqlı mənzillərin meydanı 52 кв. М (51-53 кв. М) razisində dəyişir. Kiçik dəhlizlər və eyvanlardır.
Bir otaqlı mənzil p-44 t
P-44T-də Oder Meydanı təxminən 36-38 кв.м. Onlarda balkon Və birləşdirilmiş vanna otağı.
Üç otaqlı mənzillər P-44T
P-44T seriyasındakı üç otaqlı mənzillərin meydanlarına və konfiqurasiyasına görə, n böyük səpələnmə (təxminən 73 ilə 86 metrdən) müahidə olunur.Planlaşdırma həlləri Çox şey var. Treshki künc bölmələrində mətbəxlər çox deyil və bölgələri ümumiyyətlə 10 metrdən çox deyil. Eyni zamanda, P-44T-nin adi və son hissələrində 3 otaqlı mənzillər, Erker ilə mətbəx ilə öyünə bilər və ümumi sahəsi ilə 12 ilə 14 kv.m arasında.
Трайк Otaqdakı Erker olan bir (üz p44t faktı)
P-44 seriyasının panel evləri Moskvada yaşayış binalarının ən kütləvi tipik serialları. 70-ci illrin сын Layihələrindən fərqli olaraq. P-44 çoxmərtəbəli evlərin dizaynını nəzər alaraq sıfırdan hazırlanmışdır.Serialın seriyası, mənzillərin, böyük mətbəxlərin təkmilləşdirilməsi və yük lifəsinin olması üçün faydalı idi. Əsas binalar: 1978-2000.
Moskvada P-44 tipli panel evlərinin panel evləri kütləvi inkişafın əksər ərazilərində qurulur: Крылатское, Строгине, Combat magistrallığı, Яшшы-Мульти, Митино, Зеленоград, Дехугино-Вёдино, Снежгино-Вёдино, Зеленоград, Деджино-Вёдино Принебино, Нагатино, Чертаново, Зюзино, Марьино, Братеево, Орехово-Борисово, Царицыно, Коньково, Раменки, Солнцево, Ново-Переделкино, Албалы в Фили.
hərlərdə, Химки, Королев, Балашиха, REUTHIKHA, Люберцы, chelkovo, Щелково, Elektostal, D ymir yolu, Dəmirov, Lyubertsy, Lyubertsky, Serpmirovə Həm də bu seriyanın evində Ростов-на-Дону, Ярославль, Иваново, Петрозаводск, Нижневартовск, Тында вə Кривой Рог şəhərlərində mövcuddur.
P-44 seriyasının söküldüyü siyahısına bir sıra panel evləri daxil edilmir, sökülmə ehtimalı hətta uzaqdan qaçışda son dərəcə kiçikdir.Moskvada kütləvi reabilitasiyanın (əsaslı təmir) başlanğıcı: 2010-cu ilin 1-ci yarısı.
P-44 seriyalarının evlərinin mənzillərində bütün otaqlar təcrid olunmuşdur. Hər bir giriş bir sərnişin və bir yük sərnişin liftini təmin edir. P-44 seriyasının evləri, döşəmə dəhlizlərindən tüstü çıxarılması sistemi ilə təchiz olunmuşdur, yanğınsöndürn balkon yoxdur. Mətbəx sobası — Elektrik, havalandırma təbii egzoz, mətbəxdə və banyoda bloklar. Saytda бир yükləmə klapan ilə pilləkənlərdə zibil.
Bundan fərqli olaraq, evdə P-44 seriyasında üç qatlı menteşəli panellərin xarici divarlarının quraşdırılması daxildir, bu da əhəmiyyətli dərəcəiyaı Digər бир üstünlük dəhlizlə qonaq otağı arasındakı arakəsmlərin üç otaqlı mənzildə sökülməsi ehtimalıdır.
P-44 model seriyasının evləri əsasında bir sıra dəyişikliklər hazırlanmışdır: (1997-ci ildən bəri qurulmuş), (2006-cı ildən bəri) ,. 1990-cı illərin sonlarında. P-44-dən fərqli olan I-1731 seriyasının bir neçə evi də tikdi yumşaq döşəməli Yuxarı mərtəbələr və boz dekorativ panellər Alt mərtəbələrin «daın altında».
Serialın ətraflı xüsusiyyətləri
| Keçidlər | 2-dən. |
| Mərtəbə | Moskva: 8-dən 17-dək Bölgələr: 4-dən 17-dək Ən çox yayılmış seçim 17. nadir bir istisna ilə, yaşiirışıs. |
| Tavan hündürlüyü | 2,64 м. |
| Подъемник | Bir sərnişin (320 kq.) Və bir yük sərnişinləri (500 kq.) |
| Эйванлар | Birinci mərtəbədən başqa bütün mənzillərdə лоджия. |
| Yerdəki mənzillər | 4 |
| İnşaat illəri | 1978-ci ildən 2000-ci ildən |
| Tikilmiş evlər | moskvada təxminən 1200 Moskva bölgəsində təxminən 200 Rusiyanın bölgələrində 100-ə yaxın |
| Mənzillərin kvadratı | 1 otaqlı mənzil Cəmi: 37-38 м², Yaşayış: 19 м², Mətbəx: 8 м² 2 otaqlı mənzil Ümumi: 50-58 м², Yaşayış: 8,3-10 м²: 30-34 м² 3 otaqlı mənzil Ümumi: 72–77 м², Yaşayış: 43–46 м², Mətbəx: 10 м² |
| Vanna otağı | 1 otaqlı mənzillərdə birləşdirilmiş, 2 və 3 otaqlı — ayrı.Хамам: стандарт |
| Pilləkən | Qeyri-təbii, ümumi bir eyvan olmadan. |
| Zibilsiz | Saytda бир yükləmə klapan ilə pilləkənlərdə. |
| Ventilyasiya | Təbii və məcburi egzoz, mətbəx və vanna otağında. |
| Divarlar və üst-üstə düşür | Xarici dəmir-beton panellər 30 sm qalınlıdır. Təcili və daxili daşıyıcılar — Dmir-Daxili daşıyıcılar — dəmir-beton panellər 16 və 18 sm qalınlığı.Bölmələr — Gips-beton qalınlığı 8 см. 14 кв.м qalınlığı olan gücləndirilmiş beton plitələr. |
| Damar divarları | Uzunmüddedici interkorativlər (həmçinin 2 otaqlı bir mənzildə olan otaqlar arasında bir divar «Spaschonka») və bütün (ana vəktəbl vr mə). Bayır divar panelləri — quraşdırılmışdır. Üst-üstə düşən panellər daxili divarlarda üç tərəfə əsaslanır. |
| Rənglər və örtüklər | Xarici divarlar Astarlı düzbucaqlı plitələr Ağ I.mavi rəngli (1978–1987), ağ və bej, eləcə də ağ və qəhvəyi çiçəklər (1987-ci ildən). P-44 seriyasının mərhum evləri arasındakı digər bir fərq, metal yerinə eyvanların erkən beton çəpərləri arasında. Gips açıq divarları: yalnız bir rezervasiya zamanı |
| Damın növü | Yuvarlanan örtük və daxili drenaj ilə düz. Ən yaxşı yaşayış mərtəbəsində texniki mərtəbə. |
| Ləyaqət | Döşəm dəhlizlərindən tüstü əkinçilik sistemi, erkən evlərdə — keramizit olmadan beton (qazmaq asandır) |
| dezavantajlar | Ayrı-ayrı binalarda açıq panellərin quraşdırılması keyfiyyəti, erkən evlərdə — eyvanlarda yrilərin yriləri |
| İstehsalçı | DSC-1 (Moskva evi binası 1 nömrəli birləşir) |
| Tərtibatçı | MNIITP (Moskva Tədqiqat Tiologiya və Eksperimental Dizayn İnstitutu) |
forumda müzakirə (rəylər, yenidənqurma):
Yerli inşaat yenilik
Layih Series P-44, 70-ci illərin sonlarında ilk dəfə həyatda təcəssüm edildi.О dövrdə бу layihədə yenidən qurulmuş ev, daxili inşaatda analoqu olmayan orijinal sayıldı. Həqiqətən, mətbəx 10m2-də mətbəx, quyruğu olan 6 m2 стандарт 6 m2 ilə müqayisədə böyük görünürdü. Салон «Xruşşev» evlərində olmayan mənzillərdə meydana çıxdı. Ən kiçik salonda mövcuddur bir otaqlı mənzil (50,2 м2) və 4,8 м2-реж. Трешка’да салон 13 «мейдан», бир отаглы вə бир отаглы 6.5 м2.
kil : © сайт
Girişin girişində konsyerj üçün bir yer var, ev yüklə təchiz olunmuşdur və sərnişin lifti.Hər mənzil, birinci mərtəbə istisna olmaqla — eyvanlar.
Ayrı-ayrı vanna otağı yalnız iki otaqlı mənzildə, bir otaqlı və birləşdirilmişdir. Ev hər mərtəbədə yükləmə klapanları olan zibil xoruzu təmin edir.
P-44 seriyası təkmilləşdirilmiş əməliyyat xüsusiyyətləri ilə inşa edilmişdir. İnşaatçılar üç qatlı tipli panellərdən istifadə etdilər qala mürəkkəb. Xarakterik xüsusiyyət Mənzillər keçən otaqların olmaması idi. Xarici divarlar menteşeli üç qatlı paneldən ucaldılmışdır.Таван, dəmir-betondan olan və plakatlar, plitələr və panellər üçün istifadə olunur.
Üç otaqlı bir mənzilin maraqlı bir xüsusiyyəti əvvəllər təqdim olunmayan yenidən qurulması ehtimalı idi. Fakt budur ки, qonaq otağı ilə dəhliz arasındakı müqəddəsin sökülməsinə icazə verilir, оператор divar deyil.
Evin damı var düz dam, çardaq izolyasiya olunur, buna görə damdan soyuq yuxarı mənzillər çiçək açmır. Yaşayış mərtəbəsində texniki mərtəbə var.
Son mərhələdə diqqət yetirildi açıq-saçıqlıq.Boz, danışılmamış evlər keçmişdə qaldı, bu serialın evləri üçün panellər şirəli bəzəməyə başladı fasad plitələr Bej, mavi və açıq yaşıl kölgə. Белу бир фасад биная зериф вə sliqəli бир гёрюнюш верди.
Erkən evlərin digər üstünlükləri arasında, P-44 daxili ayırın beton divarlarıbir gil yoxdur. Bunun səbəbindən divarda məişət ehtiyacı üçün bir çuxur qazmaq asandır. Döşəmə dəhlizlərində tüstü çıxarılması sistemi düşünülür.
Dezavantajları, bəzi hallarda panellərin vasitəçiliyi, eləcə də balkonlarda yriləri yrilər daxildir.Üç otaqlı bir mənzildə — kiçik bir qonaq otağı (11 м2). Dizaynerlər dəyişiklikdən narahat olmadılar standart hündürlükdə Tavan, hələ 2,64 metr qalıb.
Mənzillərin planlaşdırılması P-44
Çoxsaylı mənzil P-44 evinin evi bölmələrdən ibarət bölünür — onlar adi və bucaqlıdırlar. Bölmə növündən mənzillərin müxtəlif planlaşdırma ayırın. Bucaqlı tipli hissədə 4 mənzil var: iki 2 otaqlı və iki 3 otaqlı otaq.
Dörd mənzil də rütbələr bölməsində yerləşir. Bunlar iki 2 çimdikdir müxtəlif sahə: 50,2 м2 — xətti və 57,8 м2, «spasching» insanlar adlanır.Digər iki mənzil — 73,8m2-də 3 верхних və bir otaqlı mənzil 37,8 m2-də.
P-44 evinin layihəsi kütləvi bir seriyadir, bu cür evlər yalnız Moskvada deyil, Rusiya və Ukraynanın digər şəhərlərində də tapılır. Bu layihə üçün 90-cı illərdə yaşayış massivləri inşa edilmişdir, 2000-ci ilin əvvəlində istehsalçı yeni dəyişdirilmiş seriyaların buraxılmasına keçdi P-44. və P-44k. .
(Aşağıya baxın, böyütmək üçün vurun)
Ümumi xüsusiyyətlər
adi və son dördbucaqlı hissədən ibarzın
Mərtəbə 17 mərtəbə
Liftlər: 2 лифта — sərnişin qaldırıcı gücü 400 kq və yük sərnişinləri — 630 kq.
Havalandırma: Banyoda və mətbəxdə vents vasitəsilə təbii işlənmişdir
Bina tikintisi: Xarici divarlar — qalınlığı 300 mm qlı pançlı. Даксили — dəmir-beton qalınlığı 140 və 180 мм. Bölmələr — 80 мм. Üst-üstə düşmə — dəmir-beton.
Zibil şapka: Hər mərtəbədə çəkmə klapanları ilə.
Xarici divarlar: — 300 мм qalınlığı olan üç qatlı panellər.
Даксили: — Dmir-beton qalınlığı 140 və 180 мм. Arakəsmələr-80 мм.
Üst-üstə düşür: — dəmir-beton.
Yaşayış binalarının tavanlarının hündürlüyü — 2,64 м. Mənzillər var Əlverişli layoutGeniş mətbəxlər və koridorlar, böyük vanna otağı. P-44 серии 1979-cu ildən bəri qurulmuşdur. Daha əvvəl binalarla müqayisəd onların dizaynının üstünlükləri: mətbəx ölçüləri (8-10 кв.M.), çatışmazlığı bitişik otaqlar, Rahat vanna otağı, geniş koridorlar, hər düz eyvanda (лар), iki liftd mövcudluq.
Bu gün 3 ziyarət edək otaq mənzil, панель evi Seriya P-44T Devels DSC-1-dən
Mənzil yaxşı və geniş ortaya çıxdı, lakin dizaynerlər dizaynla müdri Otaqlar hamısı bir-birindən təcrid olunmuşdur. Mətbəx böyük bir erker və otaqda əlavə etdi künc mənzilləri Üçbucaqlı erker var. İki otaqda eyvanlar var.
Üç otaqlı mənzilin planlaşdırılmasını aşağıdakı ölçülərlə nəzərdən keçirəcəyik:
Balkon ayaqqabısı olan otaq 17.8 кв.м. (1 нёмрэли сксемдо)
Балкон олмадан отак 14,1 кв.м. (2 номера)
Balkonlu dəmir 11 кв.м. (3 номера)
Böyük bir bayer ilə mətbəx 12.9 кв.м. (4 номера)
Прихожая ilə dəhliz 14.6 кв.м. (7 номеров)
Yaşayış sahəsi 42.9 кв.м
Балконы olmadan mənzilin ümumi üsulu 70.4 кВ, м
Üç otaqlı bir mənzil üçün planlaşdırma sxemi, ölçüləri olan P-44T
Açıq-saçıq giriş qapısı Və pankarta daxil olun. Kiçik bir arxanın əvvəlcə olduğu bir kəşfi olan bir divar var. Qapının xaricində kiçik yerKiçik bir soyunma otağına və ya ayaqqabı üçün bir divana uyğun ola bilər.
Bu təcəssümdə belə bir ayaqqabı borusunun bir nümunəsini görürük.
Həm də bu yer gözəl ola bilər böyük güzgü Tam böyümədə.
İrəliyə və koridorun çox mərkəzinə çatırıq.Üç qapı ilə görüşürük. Yekun İkiqat qapı Bizi 11 кв.м otağına aparır. və balkon ayaqqabısı. Və növbəti qapı qapılar otaqlardır. Haqqında nə var böyük bir otaq 17.8 кв.м. balkon açılış ilə və sol kiçik otaqda 14 кв.м. eyvansız.
Bir qədər maraqlı fikirlər Üç otaqlı bir mənzilin koridorunun dizaynında. Fotoda aydındır ки, yaxın otaqda otaq kupe qapısını tərk edir.
Başqa maraqlı seçim Koridor. İşıq tıxacda quraşdırıldı.
Və burada, mavi koridorun sağ tərəfində, dizaynda işıqlandırılan işıqlandırma sütunları.
Коридорда мебелин тəшкили
Otaqlarda daha çox boşluq varsa və otağın kabinetlərini zibil etməyinsə, giriş salonu bu məqsədlər üçün uyğundur.
Tərəfindən uzun divar Böyük bir qarderob quraşdırılacaq.
Ким электрон kitablara girməyn və evd ev kitabxanasını kim toplayıb maraqlı həll Kitablarda rəfləri kitablara yerləşdirmək üçün koridorda olarsa.
Küncd bucaq rəflərinə uyğun olacaq.
Балкон дəмир илə отак
Прихожая ilə otağa əla giririk qapı. Adətən bu otaq qonaq otağı və ya otaq altında istifadə olunur. Otaq çox böyük deyil, kvadrat.
Və çıxarsan pəncərə rama. Pəncər sillinin бир hissəsini sökün və otağı uzada və balkonla birlikdə əlaqə qura bilərsiniz.
Həmişə kifayət qədər sakin deyil Üç otaq. Tez-tez eyvanlarda iş idarələri təşkil olunur. Hər kvadrat metr yollar olduqda belə bir vəziyyətdə olduqları ortaya çıxır.
Arxamla balkona qayıt və iki görürük daxili qapılar, DSC-1-dən hazırlanan təmirin standart planlaşdırılmasında
Bir az döyə bilərsiniz qapı. Kiçik бир арка və dəyişmək adi qapılar sürüşmə üzərində.
İki qapı çox yer yeyir. Бир qapı düzəltsəniz, künc kabinetini otağın küncünə qoya bilərsiniz.
Və bəzən bütün divarın üstündən sökün. Otaq vəzinə, koridorlu bir bölməyo qoşulan geniş otaq çıxır.
Балкон аяккабиси олан гениш отак
Bir balkona sahib olan standart geniş otaq. Uzun divarın ölçüsü 5.56 кв.м və qısa müddətdə 3.22 кв.м. Həm valideynlər, həm də uşaq otağı üçün hazırlana bilər.
Balkon izolyasiya edilərsə, divarları divar kağızı ilə əlavə edilə bilər. Balkonda yuvanı göstərin və işıqlandırma üçün asma lampalar.
Sovet dövründən xatırladığımız divarlar daha az və daha az populyarlaşır.Bunun əvəzinə, uzun dresoms tez-tez mənzilin dizaynında və interyerlərində görünür.
Ancaq çiçəklər hər ikisi moda idi, yenə də mənzillərimizi bəzəyir.
Эйвансиз отак
Üçüncü otaqda eyvan yoxdur. Böyük və geniş pəncər. Bir divarın ölçüsü 4.34 кв.м. və divarın üstündə 3,22 кв.м.
Yaxşı yataq otağı yeri. Sıx qaranlıq pərdələr, səhər günəşdən yandırmağa və istirahət günü yumşaq бир yatağa yatmağa kömək edin.
Divardakı böyük rəsmlər əvvəlcə çarpayıya baxır.
Kabinet otağında artıq olmayacaq.
3 otaqlı mənzildə Hamam və tualet
Otağı tərk edib mətbəxə getdik. Dəhlizdə yolda hamamda və tualetdəki qapının gözünə yıxırıq və düzgün dəhliz boşdur, lakin çox rahat bir kabinet sahəsi.
P-44 seriyasının evi
P-44 seriyasının ilk binaları 70-ci illərdə görünməyə başladı və evlər 90 və 2000-ci illərdə də, əhəmiyyətli dəirişikliklikliklik.Eyni tip P-44-də yaşayış hissələri: bucaq və ya adi. Bölmə növündən və mənzilin planlaşdırılması asılıdır. Серия ади, onda dörd mənzil yerdədir: meydana gələn iki yataq otağı 50,2 кв.м. (Xətti) və 57,8 кв.м. («Спасчонка»), ümumi sahəsi 37,8 кв.м və ümumi sahəsi 73,8 metr olan üç otaqlı bir otaqlı. P-44 seriyasının evləri — n çox hissəsi tipik evlər, Evlərin P-44-də təsirli və paylanmasının siyahısı.
Bu seriyaların bu seriyasının üstünlüyü, tüstü dəhlizlrindən, eləcə də bir işığın duman dəhlizlərindən, habelə gilsiz betonun olması, yüngbırı yDezavantajları ayrı-ayrı binalarda olan açıq panellərin quraşdırılmasının keyfiyyəti daxildir. Erkən evlərdə eyvanların döşəmələri əyri. Evdəki P-44 seriyası, böyük bir potensial bir həyat səbəbiylə yaxın gələcəkdə sökülməsinə məruz qalmır.
Дистрибьютор şəhərləri — Москва, Химки, Долгопрудный, Одинцово, Реутов, Серпухов, Щелково, Черноголовка, Любня, Люберный, Люберный, Люберты, Дзержинский, 000, Иваново, Ярославль, ул. evinin şəkli
Künc hissəsində yalnız iki və üç otaqlı mənzillər.Daxili divarlar Layihəni, xarici divarları izolyasiya, üç qat, 300 мм qalınlığında dəyişdirməyə imkan verməyən dəmir-betondan, 140 və 180 мм qalınlıdır. Xarakterik mavi və ya yaşılımtıl rəngə görə bir sıra tapmaq kafel. Girişlərdə iki лифт: yük və sərnişin. Layihəni uğurlu adlandırmaq olar: otaqlar izolyasiya olunur, koridorlar böyükdür, ən azı 8 kv.m. Minadanlar, Treshka’da kiçik bir qonaq otağı daxildir — yalnız 11 кв.м. və bu müddət üçün 2.64 metr olan standart bir tavan hündürlüyü var.
P-44 seriyalarının evlərində mənzillərin planlaşdırılması.
Seri P44T. Сери хас румах p44 tata letak 3 kamar apartemen p44 dengan sizesi
Rumah seri P-44
Bangunan pertama dari seri P-44 mulai muncul di tahun 70-an, dan rumah-rumah dibangun bahkan pada tahun 90-an dan 2000-an, tanpa perubahan signifikan. Bagian perumahan dalam P-44 тип ян сама: угловой атау biasa. Дари Дженис Багиан дан perencanaan apartemen tergantung. Jika seri biasa, maka empat apartemen terletak di lantai: dua dua kamar tidur dengan kotak 50,2 кв.м. (Линейный) дан 57,8 кв.м. («Спашинг»), сату сату камар денган денган общая площадь 37,8 кв.м. дан сату камар тига денган луас всего 73,8 метра. Rumah-rumah seri P-44 adalah salah satu rumah standar massal, mengesankan дан daftar distribusi rumah P-44.
Keuntungan дари сери румах иници адалах кехадиран система penghapusan какап дари коридор лантай, серта бетон танпа танах лиат румах авалАпа янь menyebabkan pengeboran cahaya. Kerugiannya meliputi kualitas pemasangan панель Луар Руанган, янь ditemukan ди бангунан терписах.Di Rumah-Rumah Aval, Lantai di Balkon Bengkok. Сери P-44 ди Rumah тидак secara unik tidak dikenakan pembongkaran dalam waktu dekat karena kehidupan potensial yang besar.
Кота Дистрибусы — Москва, Химки, Долгопрудный, Одинцово, Реутов, Серпухов, Керета Апи, Щелково, Черноголовка, Москва, Лобня, Люберсы, МытиЩи, Дзержинский, Электросталь, Петрозаводск, Кривоярск, Рогьярская обл.
Фоторамка панно «П-44» деньгана солнца
Di bagian sudut hanya apartemen dua dan tiga kamar tidur.Dinding Interior Bantalan, dari beton bertulang, tebal 140 dan 180 мм, yang tidak memungkinkan untuk mengubah tata letak, dinding luar dengan isolasi, tiga lapisan, tebal 300 мм. Menemukan seri karena warna biru atau kehijauan yang khas menghadapi ubin. Di pintu masuk dua lift: kargo dan penumpang. Тата летак дапат дисбут суксес: камар диисоласи, лоронг-лоронг бесар, дапур сетидакня 8 кв.м. Minusnya termasuk ruang tamu kecil di Treshka — ханья 11 кв.м., дан кетингский лангит-лангит стандарт 2,64 метра унтук вакту иту.
Perencanaan apartemen di rumah-rumah seri P-44.
Ukuran ini dihapus oleh pribadi saya di apartemen saya di akhir instalasi rumah. Mengenai ukuran, perlu dicatat bahwa semakin tinggi lantai, semakin besar area apartemen saat dinding di lantai atas lebih gelap. Далам касус сая, район apartemen lebih besar dari 0,5 метра persegi dari alun-alun yang ditunjukkan dalam kontrak pendahuluan Untuk penjualan apartemen dan itu lebih menyenangkan daripada mendapatkan minus di terapletaktemen minus yawah di satahletaktemen di.
Sekarang mari kita pergi langsung ke perencanaan apartemen dan memandingkannya dengan предложение lain dari tiga apartemen kamar Di Rumah seri ke-111 dari perusahaan GVSU. Pengukuran apartemen tiga kamar tidur Disajikan pada gambar berikut:
Perbandingan apartemen 3 kamar tidur dari seri P-44T дан 111m
Area apartemen ini hampir sama — yang lebih seperti. Ини адалах масалах селера дан кебутухан, тетапи сая менюкай perencanaan P-44T lebih.Менгапа?
1. Lokasi kamar mandi.
Di P44-T, kamar mandi terletak di koridor di dekat lorong, dan di 111 antara dua kamar. Далам версия кедуа, суара воздух, мембука дан менутуп пинту, акан селалу терденгар ди камар декат камар манди, янг акан менганггу кехенган ди камар-камар иници.
2. Дапур.
Di P44-T дан 111, dapur memiliki kotak serupa, tetapi dalam versi pertama dapur dengan Erker. Terima kasih kepada Erker di dapur, itu akan selalu ringan, dapur akan memiliki pemandangan yang lebih indah.
3. Коридор.
Di koridor P-44T lebih luas dan pendek, yang akan memungkinkan Anda untuk menginstalnya kabinet yang baik Untuk pakaian non-musiman dan hal-hal lain, dan di koridor ke-111 sempit dan panjang, yang mengunkan de la undun tidungan.
4 камар
Далам P-44T, сая менюкай кеньатаан бахва камар-камарнья лебих луас, янь мемунгкинкан Анда унтук лебих менгунакан область мерека, дан ди камар 111 чукуп семпит, ян тидак акан мемунгкинкан сэмпит сукэ мемурис диуин мемурис.Джуга ди p-44t semua kamar ukuran yang berbedaBerkat ini, Anda akan memiliki lebih banyak «манувер» далам мемилих джанджи мазинг-мазинг дари тига камар.
5. Балкон.
Di P-44T dua adalah balkon yang cukup luas, dan pada tanggal 111 ia sendirian. Layak memperhatikan fakta bahwa biayanya meter persegi Tempat dingin, sebagai aturan, setengah lebih rendah dari perumahan, yang berarti Andambayar dua kali lebih sedikit Untuk balkon дан mendapatkan lebih banyak meter persegi.
Jika Anda memiliki pertanyaan, maka tanyakan pada komentar — Saya akan menjawabnya!
Тата Летак P-44T dengan Dimensi
Perencanaan apartemen di P44T dengan opsi pembangunan kembali
Perencanaan apartemen dua kamar Seri p 44t.
Appense Dial.
Биасаня ада площадь секитар 60-64 кв.м. Dapur memiliki Erker besar, дан masing-masing kamar di balkon yang luas.Bahkan, ini adalah treshka yang sama hanya dengan «menyegel» ruang lurus dan berdekatan dengan situs koridor.
Циферблат линейный П-44Т
Alun-alun apartemen dua kamar tidur односторонний berfluktuasi площадью 52 метра persegi (51-53 кв.м). Мерека адалах коридор кесил дан балкон.
Apartemen Satu Kamar Tidur P-44 T
Oder Square di P-44T adalah sekitar 36-38 кв.м. Di dalamnya balkon kecil Dan kamar mandi gabungan.
Apartemen tiga kamar tidur P-44T
Menurut kuadrat дан konfigurasi apartemen tiga kamar dalam seri P-44T, pencar terbesar diamati (dari sekitar 73 hingga 86 метров). Solusi perencanaan juga banyak. Дапур ди багиан судут Трешки тидак мемилики Эркерс, дан даэра мерека биасанья тидак мелебихи 10 метров. Pada saat yang sama, apartemen 3 kamar tidur di bagian biasa dan akhir dari P-44T мембрангакан dapur dengan Erker дан всего luas 12 hingga 14 кв.м.
Trika dengan Erker di dalam ruangan (Wajah Fakta P44T)
Keluarga menjadi kohesif ketika anggotanya memimpin diskusi bersama dan implementationasi desain kamar dalam proses repairasi apartemen yang akan datang.
Treshka dipilih oleh contoh untuk menghasilkan solusi, karena metode, metode, dan ide-ide itu desain Desainer Berlaku untuk satu kamar дан Untuk tata letak dua kamar tidur dari perumahan rumah ini.
Fitur dari desain apartemen tiga kamar P-44T
Pengejaran seri P-44T adalah perumahan terbaik untuk keluarga.Ini memiliki tiga kamar, dan dua terisolasi, dilengkapi dengan dua balkon, salah satunya adalah loggia, ada dapur yang luas.
Tetapi penyewa mengatakan bahwa ada dua kurangnya salah satu apartemen dari seri rumah P-44T ini, spesialis setuju denganmereka:
- Perumahan apa yang memiliki besar, gelapang dan beruklakoridaka tidaku.
- Апа далам. Панель Rumah Dinding dan partisi adalah operator, karena yang tidak mungkinmbuat pembongkaran dan mentransfer dinding untuk mengoptimalkan ruang ataumbongkar bagian dinding untuk memuat pintu.
Karena itu, Untuk mendapatkan izin Untukmeerstrukturisasi ruang perumahan, Anda perlu melampirkan kesabaran maksimal Untuk melakukan koordinasi, tetapi Anda dapat menolak.
Selain itu, penyewa mencatat kurangnya cahaya alami di kamar, meskipunmereka luas dan dilengkapi dengan jendela. Karena itu, ketika desain interior, pencahayaan harus terorganisir dengan baik.
Трешка Обновление dapat dilakukan sehubungan dengan menghilangkan kerugian di atas, serta pembatasan bangunan.Selain itu, rekonstruksi ruang perumahan harus dilakukan dengan mempertimbangkan jumlah anggota keluarga, mengingat pendapat pribadimereka, serta preferensi. Urutan pendaftaran dapat dilakukan baik di relatif yang sama ke semua kamar. keputusan desainerAtau dalam berbagai solusi Untuk setiap ruang tamu. Atau bahkan terpisah zona Fungsional. Далам Руанган. Пада саат ян сама, перлу унтук менгамати кехармонисан гая кеселурухан.
Seni, Ruang Tamu, Kamar Tidur, Dapur, Kamar Mandi
P44T Treshka, adalah bahwa kamarnya terisolasi, itu memungkinkan untuk berbagai desain.Dapur besar, serta Loggias memungkinkan untuk mengimplementasikan ide dan solusi kardinal.
Solusi kardinal, komprehensif adalah penggunaan sedikit yang melibatkan area lorong dan koridor, menetapkan lemari dengan cermin flaps, yang memungkinkan untuk secara visual meningkatkan area lorong dan koridor.
Sekarang desainer jauh dari sebelumnya digunakan dalam desain ruang perumahan Klasik dalam bentuk plesteran, kolom, Furnitur besar. Spesialis menolak barang-barang yangmbuat perumahan tidak nyaman, dianggap serius, yang menyerupai bangunan Museum.Sekarang preferensi diberikan kepada proyek-proyek jenis desain modern, serta jenis dekorasi premis perumahan baru.
Kami menghias ruang tamu
Kamar tamu adalah desain nada cahaya. Tempat ди мана keseluruhan koleksi anggota keluarga sedang terjadi, дан mengambil tamu, menyusun warna cerah. Di ruang tamu mengalokasikan beberapa zona yang berbeda. Унтук истирахат, далам расанья дан предпочтительно пендудук. Диван Selain, ada beberapa kursi di sini, letakkan meja untuk komputer atau tekan, letakkan TV.
Terkadang disatukan dengan Loggias, dilengkapi dengan bar dengan bar, memuat kafe.
Руанг таму, ян дибуат далам типе Скандинавия, сехарусня дигунакан бахан алами себагиан бесар варна путих. Tetapi tipe Amerika menunjukkan keberadaan perapian, dan sebaliknya itu adalah диван. Унтук пенггемар эксотис, ада опси унтук гая Тимур, Америка латинский атау африка. Setelahmbuat ruang tamu dengan pusat interior, Anda juga dapatmbuat aula masuk, serta koridor dan dapur.
Джика Анда Менгамбил Ризико дан Мемуат Пембангунан Кембали, Мака Солуси Оптимальный — Ини Унтук Менггабунгкан Руанг Таму Денган Дапур Денган Пинту Атау Ленгкунган Дари Аула Ке Дапур, Ян Акан Мэнгкунгар Кынкунку Селаруга Бесаруга Бесаруга Бесаруга.
Kamar tidur
Tekanan di kamar tidur pembaruan adalah kehadiran, serta lantai anak-anak. Джика, мисальнйа, келуарга мемилики дуа кетурунан дари дженис, келамин ян сама, мака дэсайн камар тидур анак-анак адалах сату, джика мерека берхубунган секс, мака оранг туа харус членени мерека кедуа камар тидуран дани мэиндах дани меминдах.
Kamar tidur anak-anak disusun tergantung pada usia dan jenis kelamin anak-anak, serta karakter дан temperamenmemeka. Untuk anak-anak, jenis pembaruan dipilih oleh orang tua sesuai dengan preferensimereka sendiri.
Remaja pemilih, Merka mencegah klaim dan mengajukan kebutuhanmereka sendiri Untuk tempatimeka sendiri. Oleh karena itu, dalam prosesmbahas desain kamar tidur Untuk remaja, perlu Untuk memperhitungkan pendapatremeka. Kemungkinan besarmereka bersikeras memperbarui kamar tidur dalam bentuk minimalis, seni pop atau perangkat lunak.
Gadis-gadis Kamar rekreasi malam yang menarik didekorasi dengan gaya Prancis дан Шебби.
Камар тидур анак-анак харус мемилики мультифунгси джуга фурнитур аман Денган котак дан котак унтук менйимпан майнан.
Джика ада сату камар анак-анак дан сату оранг деваса, атуран ян тидак берубах унтук десайн камар тидур иници адалах бахва джениснья харус бербеда дари солуси кеселурухан дари селурух апартемен.
Tren saat ini dari spesialis adalah desain tipe bedroomes Arab, di mana bahan dekorasi adalah tekstil, янь dengan sendirinyambuat ruangan ini tidak biasa. Дан Джика Бахан Ини Алами, Дан Камар Тидур Диленгкапи Денган Фурнитур Дари Похон Алами Дженис Эко Адалах Проек Ян сама Ян Дибутухкан Унтук Пендудук Мегаполис.
Dapur di Treshka P-44T
Adapun dapur seri rumah ini, itu dikombinasikan dengan loggia atau tonjolan kaca dari dinding luarApa yang disbut Erker. Ini memberi kesempatan Untuk mengimplementasikan ide-ide penggunaannya atau sebagai area tempat duduk, atau menempatkan zona wastafel di sana. Untuk ini, tidak perlumbongkar baterai pemanas, дан memasukkannya ke dalam kotak grille. Jika tidak, Anda harus memasang peralatan pemanasan tambahan, melengkapi dapur dengan lantai atau konvektor yang hangat.
Mengenai передачи Mencuci ке Erker, ia harus menjalani prosedur koordinasi, karena modernisasi tersebut akanmbutuhkan perubahan komunikasi Teknik dan untuk memastikan kemiringan tiriskan limbah Kita harus lnaikkan.
Ini harus menggunakan Мебель mengulangi kontur Erker. Бенар, Джика Анда melengkapinya dengan meja padat, maka dia akan menghaluskan Erker di dalam dapur dengan tepi на открытом воздухе янь халус.
Relatif terhadap desain visual dapur, maka sering menggabungkan gaya di sekitar satu pemecahan warna pedalaman.Karena itu, Anda dapat menggabungkan klasik dan tipe modern. Teknologi tinggi, baik Prancis maupun Provinsi, serta tipe Belanda дан Skandinavia.
Desain Sanuzla
Dalam seri Rumah-Rumah P-44T perumahan dua dan tiga kamar tidur yang dilengkapi dengan kamar mandi terputus, jadi melakukan desain kamar mandi, para trans ahli disarankanunnunkammembuat meduan туалетная часть , дан ди янь кедуа — Таблетка макулярного dengan wastafel дан penyimpanan meja tempat tidur produk kebersihan.
Далам Халини, Кабин Манди Денган Палет Акан Лебих Дисукай Дарипада Танпа Иту, Карена Менгилангкан инсталляси Пембуанган Воздух Лимбах Ке Лантай Камар Манди, Ян Акан Мемерлукан Багиан Дари Проседур Координаси.
Баги мерека ян тидак мембуат проседур пембангунан кембали ян лама, десайн джади десайн интерьер квартиры P-44T, релатиф терхадап камар манди, меркомендасикан менгинстал кабин ке локаси ди мана туалет берада ди судан кан янь.
Akomodasi di Rumah-Rumah seri P-44T ди Антара для профессиональных акан terdengar sangat disesuaikan Untuk Implementasi Keputusan Paling Berani, baik oleh penyewa maupun pada Mereka Yang diusulkan oleh para Ahli.proyek siap Pembaruan apartemen 3 kamar P-44T.
Sebagai hasil dari pembaruan apartemen, itu menjadi tidak hanya akomodasi yang nyaman, tetapi juga hubungan yang luar biasa дан ньяман антара анггота келуарга седанг дибангун. Dengan kata lain, pekerjaan kreatif bersama memperkuat keluarga.
Rumah панель для серии P-44 серии Bangunan Perumahan Paling Masif di Moskow. Tidak seperti proyek lain dari akhir 70-an. P-44 dikembangkan dari awal, dengan mempertimbangkan pengalaman desain rumah multi-lantai.Rangkaian seri ini bermanfaat bagi perencanaan apartemen yang lebih baik, dapur besar dan kehadiran lift barang. Бангунан утама: 1978–2000.
Di Moskow, Rumah panel dari seri tipe P-44 dibangun di sebagian besar bidang pengembangan massa: Крылатское, Строгино, Джалан Райа Темпур, Гуд-Мульти, Митино, Зеленоград, Ховрино, Бескордниково, Бусиносино, Дегунино , Жулебино, Принтер, Нагатино, Чераново, Зюзино, Марьино, Братеево, Орехово-Борисово, Москворечье-Сабурово, Бутово-Утара, Царсыно, Коньково, Раменки, Солнцево, Ново-переделкино, Вишня дан Фили.
Ди вилайах Москва дари румах сери Р-44 ян дибангун ди кота-кота: Химки, Королев, Балашиха, Реутов, Люберсты, Дзержинский, Щелково, Черноголовка, Электросталь, Керета Аповои, Баласты, Одпинцовские дзеровины. Юга ди ромах сери ини хадир ди кота Ростов-на-Дону, Ярославль, Иваново, Петрозаводск, Нижневартовск, Тында дан Кривой Рог.
Сери панель ромах Сери P-44 ке далам дафтар тидак термасук, пробабилитас пембонгкаран бахкан далам перспектиф джангка панджанг сангат кесил.Авал дари реабилитации массовых (пербайканских) в Москве: paruh pertama dari 2010.
Semua kamar di apartemen rumah-rumah seri P-44 terisolasi. Setiap pintu masuk menyediakan satu penumpang dan satu lift penumpang kargo. Rumah-rumah seri P-44 dilengkapi dengan sistem penghapusan asap dari koridor lantai, tidak ada balkon pemadam kebakaran. Kompor — Listrik, Ventilasi knalpot alami, blok di dapur dan di kamar mandi. Sampah di tangga, dengan katup pemuatan di situs.
Tidak seperti, seri P-44 di rumah termasuk instalasi dinding luar panel berengsel tiga lapis, yang secara signifikan meningkatkan karakteristik isolasi panas seri.Keuntungan lain adalah kemungkinan menghancurkan partisi antara koridor dan ruang tamu di apartemen tiga kamar tidur.
Atas dasar rumah seri model P-44, sejumlah modifikasi telah dikembangkan: (dibangun sejak 1997), (sejak 2006),. Пада ахир 1990-ан. Джуга мембангун beberapa rumah seri I-1731, berbeda dari P-44 hanya berjajar ubin lembut lantai atas дан абу-абу панель декоративного «Di bawah batu» dari lantai bawah.
Fitur terperinci dari seri
| Petikan | dari 2. |
| Лантай | Москва: дари 8 хингга 17 Даэра: дари 4 хингга 17 Пилихан ян палинг умум адалах 17. Денган пенгекуалиан лангка, лантай пертама перумахан. |
| Тингги лангит-лангит | 2,64 м. |
| Лифт. | Сату пенумпанг (320 кг) дан сату пенумпанг ангкутан (500 кг). |
| Балкон. | Loggia di semua apartemen selain lantai pertama. |
| Лантайские апартаменты | 4 |
| Tahun konstruksi | dari tahun 1978 hingga 2000 |
| Dibangun Rumah | sekitar 1.200 вилайя Москва Секитар 200 вилайя Москва секитар 100 вилай Россия |
| Persegi Apartemen | Всего апартаментов 1 Kamar: 37-38 м²: 19 м², Dapur: 8 м² Всего апартаментов 2 Kamar Tidur: 50-58 м², Hidup: 30-34 м², Dapur: 8,3-10 м² Apartemen 3 kamar Общая: 72-77 м², Hidup: 43-46 м², Дапур: 10 м² |
| Kamar mandi | di 1 kamar apartemen digabungkan, dalam 2- dan 3 kamar — terpisah. Пемандиан: Standar |
| Tangga | Tak serangan, tanpa balkon umum. |
| Мусоропровод. | Di tangga dengan katup pemuatan di situs. |
| Ventilasi | Knalpot alami dan paksa, di dapur dan kamar mandi. |
| Dinding dan tumpang tindih | Панель Di luar ruangan beton bertulang Tebal 30 см. Pembawa darurat dan interior — Панно из бетона bertulang ketebalan 16 дан 18 см. Партизи — кетебалан бетон гипсум 8 см. Tumpang tindih — piring beton bertulang Setebal 14 см. |
| Dinding bantalan | Интеркорциальный продольный (serta dinding di antara kamar-kamar di apartemen 2 kamar «spaschonka») dan melintang semua (Interoupe dan Interroom).Панель-панель Di luar ruangan — Dipasang. Панель tumpang tindih didasarkan pada tiga sisi di dinding bagian dalam. |
| Warna dan Cladding. | Dinding luar dilapisi dengan ubin putih persegi panjang dan warna biru (1978-1987), Putih dan Beige, serta Putih dan bunga coklat (Sejak 1987). Perbedaan Lain Antara Rumah-Rumah Akhir Seri P-44 dari pagar beton bertulang awal balkon, bukan logam. Dinding luar plester: hanya selama reservasi | .
| Jenis atap | Flat S.покрытие гулунг дан дренаж педаламан. Lantai teknis di lantai perumahan atas. |
| Martabat | Sistem pertanian asap dari koridor lantai, di rumah awal — beton tanpa ceramisit (mudah bor) |
| Kekurangannya | Панель Kualitas pemasangan luar ruangan di gedung-gedung terpisah, di rumah-rumah awal — kurva lantai di balkon |
| Пабрикань | ДСК-1 (Московский домостроительный комбинат №1) |
| Perancang | Mniitp (Institut Penelitian Moskow Tyologi dan Desain Eksperimental) |
Tipikus treshka dizájn — Felszerelni a házat
Két teljes munkaidős munka egy nappaliban
Festmények, párnák, figurák, virágvázák — évszázadok óta az európai belső terekben használt dekorációs elemek is ebben a belső terekben működnek.Az apartmanban sok tükör van elegáns keretekben — a dekorációs célokon kívül elősegítik a terület vizuális növelését is a fény hozzáadását. Ami a textiltermékeket illeti, természetes szöveteket használtunk — jobb, ha nem takarít meg függönyökkel a klasszikus belső térben. Наппалибан ezek szatén kéttónusú függönyök, a hálószobában — shantung selyemfüggönyök, аз óvodaban bézs nyomású anyag.
Probléma van: Két hálószobás apartman Hruscsovban
A projekt költségeinek korlátozása érdekében az ifjúsági szobát, valamint az összes többi szobát kész bútorokkal berendezik.Az egyéniséget a belső dekorációk és dekorációs elemek — tapéta, mennyezeti és fali lámpák — аджак a belső tereknek. A faldekorációs minták aktivitása miatt a textíliák nyugtató színű anyagból készülnek.
Egypt fiatal párra jellemző tipikus treshka tervezési projektje
Mielőtt elkészítene egy 85 nm-es háromszobás lakást. классический стиль и FlatArts csapattól. Feladat érdekes, 2,57 magasságú mennyezet, tárolóhelyek, a funkcionalitás, amennyire csak lehetséges, átgondolása…
Прованс еги типикус трешка 1605-AM-ben: Татьяна Живолупова projektje
Geometrium dizájnstúdiójának belső részében a skandináv stílus modern stílusban van bemutatva: hely kényelmes is funkcionális, klasszikus hideg palettát egy természetes fa melegíti.
A szépség megmenti a világot — háromszobás apartman kialakítása egy tipikus házban
Az egyik szoba is a folyosó között elválasztották a válaszfalat — ez csaknem volt az a lehetőség, hogy növeljék a szoba területét, is abban elrendezzék abban elrendezzék a nappali.
Háromszobás apartman kialakítása: ТОП 100 фотографий с легкостью
Általában véve, a cikk nem rossz, de vannak megjegyzéseim tőlem, mint egy gyakorló tervezőtől.Még a megjegyzéseket sem, de stílus tippeket. Belső terek fényképeiben, nappali szobáiban észrevettem a nyújtható mennyezet, a fényes, a színes és a beépített fülkék használatát, valamint a kerület körül gipszet. Figyelmeztetni szeretném, drága olvasó, a tervező elem másolásától. Tehát nem viselik most))) A divatos egyszerű, egyenletes mennyezetek. Ha drága gipsz vagy gipsz előállítása, használhat rugalmas, de matt vagy szatén anyagot. És lesz egy gyönyörű, elegáns apartmanja.
Kicsi 3 szobás, 63 nm-es lakás kialakítása m.египетская панель házban
A jelenleg rendelkezésre álló szabványos lakóépületek az építkezés korszaka szerint több hagyományos kategóriába sorolhatók. Mindegyiknek megvannak a maga előnyei és hátrányai, amelyeket előnyösen hangsúlyozni lehet, vagy éppen ellenkezőleg, álruhában, csak egy tipikus lakás belső tereinekzékompetens fejles.
Háromszobás «panelek»: sok szoba van — nincs elég hely
Korábban már írtunk az egy- és kétszobás apartmanok elrendezésének jellemziről 60-80-as évek panelházaiban.múlt században. Ebben аз áttekintésben a «трешки» -ről fogunk beszélni. Sőt, leginkább költségkímélő házról fogunk beszélni — szegmensben egy régi és szabványos panel található.
Tervezési lehetőségek egy két hálószobás apartmanhoz, fénykép
A három szobás lakás kialakításához a tulajdonos is a tervező mind a legnagyobb figyelmet igényli. Ha önállóan szeretne házat rendezni, akkor sok időre és erőfeszítésre, szeretteinek segítségére és természetesen arra az inspirációra van szüksége, amelyet megpróbálunk Öszüksége, amelyet megpróbátani ölunk biz.
Hogyan készítsünk egy négyszobás lakást egy tipikus három rubeljegyből?
Képzeljünk el egy meglehetősen általános helyzetet: Öt család (nagymama, anya, apa, végzős hallgató fia és tizenéves lánya) háromszobás apartmanban örzitsynévélés. В апартаментах M-30 сорозат хазабан талальхат, есть харом наппали сборник, его коньяхабуль, его визитка, эгы фолийособоль, и его логикаболь. A lakás teljes területe 61,1 méter.
Апартаменты с проживанием в семье P44T tervezési terve: tervezési és felújítási szolgáltatások
Mindegyik saját maga látja a helyzetét lakásában.De jobb, ha megnézzük azokat a példákat, amelyekkel a szakemberek kidolgozták a P44-T háromszobás apartman tervezési tervét. A kialakítás eltérő, attól függően, hogy a leszállás melyik része a lakás. Ez a tényező befolyásolja az általános kialakítást, a tér megszervezésének és az övezetek kialakításának képességét. A moszkvai tervezőirodák szakembereinek általános ajánlásai azonban meg fogják mondani, hogyan kell a lakások maximális előnyeivel használni.
Տնային պայմաններ P44t Layout 2 սենյականոց բնակարան P44t
P-44t ասավորությունը չափերով
Պլանավորում են բնակարանները P44t- ում `վերակառուցման ընտրանքներով
P 44 համար նախատեսված երկու սենյականոց բնակարանների պլանավորում
ԴԱՇՏՊԱՆՈՒՄ
Սովորաբար կա մոտ 60-64 ք.մ. Խոհանոցն ունի մեծ Էրկեր եւ ընդարձակ պատշգամբի սենյակներից յուրաքանչյուրը: Փաստորեն, սա նույն Treshka- ն է միայն «կնքման» տասնմեկ ուղիղ սենյակով եւ միջանցքի կայքի հարեւանությամբ:
Գծային հավաքածու P-44T
եակողմանի երկու սենյականոց բնակարանների հրապարակ տատանվում է 52 քառակուսի մ (51-53 քառակուսի մ) տարածքումե000: 9րմիջակուսի) տարածքումե000: Դրմիջան են
Մեկ սենյականոց բնակարան P-44 տ
P-44T- Oder Square- ը կազմում է մոտ 36-38 ք.մ. Նրանք ունեն փոքր պատշգամբ եւ համակցված բաղնիք:
Երեք սենյականոց բնակարան P-44T
Ըստ Р-44T շարքի երեք սենյականոց բնակարանների հրապարակների եւ կազմաձեւերի, դիտվում է ամենամեծ ցրումը (մոտ 73-ից 86 մետր): Պլանավորման լուծումները կան նաեւ շատ: Трешки անկյունային հատվածներում խոհանոցները չունեն erkers, եւ նրանց տարածքը սովորաբար չի գերազանցում 10 մետրը: Միեւնույն ժամանակ , P-44T- սովորական եւ ավարտական հատվածներում 3 սենյականոց բնակարաններ պարծենում են խոհանոցներով եւ ւ 12-իցանոցներով եւ 12-անոցներով եւ 12-անովներով եւ 12-անոցներով ե 12-անոցներով եւ 12-աններով ե 12-.մ ընդհանուր մակերեսով խոհանոցներով:
Տրիկա Էրկերով սենյակում (Face P44t փաստ)
Р-44 սերիայի տուն
Р-44 սերիայի առաջին շենքերը սկսեցին հայտնվել 70-ականներին, իսկ տները կառուցվել են նույնիսկ 90-ականներին եւ 2000-ականներին, առանց էական փոփոխությունների: Բնակելի հատվածներ Р-44- ում նույն տեսակը, անկյունային կամ սովորական : Բաժնի տեսակից եւ բնակարանի պլանավորումը կախված է: Եթե \ u200b \ u200b շարքը սովորական է, ապա հատակին տեղակայված են չորս բնակարան, երկու երկու սենյականոց, հրապարակներով 50.2 ք.մ: (Գծային) եւ 57,8 քմ: ( «Սպասչոնկա»), մեկ սենյակ, ընդհանուր մակերեսով 37,8 քմ եւ մեկ երեք սենյակ, ընդհանուր մակերեսով, 73,8 մետր: Р-44 սերիայի տները ամենասարսափելի ստանդարտ տներից են, տպավորիչ եւ տների բաշխման ցուցակը Р-44:
Այս շարք տների առավելությունը հանդիսանում է հատակի միջանցքներից ծուխը հեռացնելու համակարգի առկայություն, ինչպես նաեւ վաղ տներում առանց բետոնի, ինչը հանգեցնում է թեթեւ հորատման: Թերությունները ներառում են բացօթյա վահանակների տեղադրման որակը, որոնք հայտնաբերվում են առանձին շենքերում : Վաղ տներում պատշգամբների հատակները ծուռ են: P-44 շարքը տանը եզակի չի ենթարկվում մոտ ապագայում քանդման, հսկայական հավանական կյանքի պատճառով:
Բաշխման քաղաքներ — Москва, Химки, Долгопрудный, Одинцово, Реутов, Серпухов, Reernogolovka, Москва, Лобня, Люберцы, Мытищи, Дзержинский, Иваново, Ярослав, Նիժնեւարտովսկ, Պետրոզավոդսկ
«P-44» պանելային տան լուսանկարը Solntsevo- ի եար անկար րաններ: Ներքին պատերը կրում են երկաթբետոնից, 140 եւ 180 մմ հաստությամբ, ինչը թույլ չի տալիս փոխել դասավորությունը, արտաքին պատերը մեկուսիչով, երեք շերտով, 300 մմ հաստությամբ: Սերիան սովորում է երեսպատման սալիկի բնորոշ կապույտ կամ կանաչավուն գույնի պատճառով: Մուտքագրերում երկու վերելակ, բեռ եւ ուղեւոր: Դասավորությունը կարելի է անվանել հաջողակ.Սենյակները մեկուսացված են, միջանցքները մեծ են, խոհանոցներ առնվազն 8 ք.մ. Մինուսները ներառում են Տրեշկայի փոքր հյուրասենյակ `ընդամենը 11 քմ, եւ այդ ժամանակ 2,64 մետր ստանդարտ առաստաղի բարձրությունը:
Р-44 սերիայի տներում բնակարանների պլանավորում:
Եկեք այցելենք 3 սենյականոց բնակարան, Р-44T սերիայի պանելային տունը Разработчик ДСК-1- ից
Բնակարանը պարզվեց, որ լավն ու ընդարձակ է, բայց դիզայներները իմաստուն չեն դարձել դիզայնով, եւ դասավորությունը պարզվել է, որ նման է վահանակների տների այլ նմանատիպ երեք սենյականոց բնակարանների: Սենյակները բոլորը մեկուսացված են միմյանցից: Խոհանոցին ավելացվել է մեծ լաստանավ եւ եռանկյունաձեւեր է առաջանում անկյունային բնակարանների սենյակում: Երկու սենյակներում կան պատշգամբներ:
Մենք կքննարկենք երեք սենյականոց բնակարանի պլանավորումը հետեւյալ չափերով.
Սենյակ պատշգամբով կոշիկի հետ 17.8 ք.մ. (1-ին սխեմայով)
Սենյակ առանց պատշգամբ 14.1 ք.մ. (2-րդ սխեմայով)
Սենյակ պատշգամբի երկաթով 11 ք.մ. (3-րդ համարի սխեմայով)
անոցը մեծ Bayer- ով 12.9 .մ. (4-րդ սխեմայի մեջ)
Միջանցքը միջանցքի հետ 14.6 ք.մ. (7-րդ համարի սխեմայով)
Բնակելի մակերեսը 42.9 քմ
անց պատշգամբների ընդհանուր մեթոդ 70,4 կՎ,
Պլանավորման սխեման `երեք սենյականոց բնակարանի P-44T չափերով
Բացեք մուտքի դուռը եւ ընկեք նախնական բանկիրին: Բացահայտմամբ պատ կա, որում ի սկզբանե արվել էր մի փոքրիկ կամար: Դռան սահմաններից աջ, կա մի փոքր տարածք, որտեղ փոքր հագնվելու սենյակ կամ կոշիկի պայուսակ կարող է տեղավորվել:
յս մարմնավորման մեջ մենք տեսնում ենք նման կոշիկի խողովակի օրինակ:
աեւ այս տեղը կարող է լիարժեք աճի մեջ վերցնել մի գեղեցիկ մեծ հայելի:
Մենք առաջ ենք անցնում եւ հասնում ենք միջանցքի հենց կենտրոնին: Մենք հանդիպում ենք երեք դռների: Ձախ կողմում, մեծ երկակի դուռը մեզ տանում է դեպի 11 ք.մ. եւ պատշգամբի կոշիկ: Եւ երկու կողքին դռները սենյակներ են: Որ իրավունքը 17,8 ք.մ. Ատշգամբի կոշիկի հետ, եւ որ ձախ փոքր սենյակում 14 է: առանց պատշգամբի:
Մի անի հետաքրքիր գաղափարներ, երեք սենյականոց բնակարանի միջանցքի դիզայնում: Լուսանկարում պարզ է, ր ենկար, որ մոտ սենկկար ում
ահլիճի մեկ այլ հետաքրքիր տարբերակ: Լուսավորությունը տեղադրված էր կամարի մեջ:
ահա, կապույտ միջանցքի աջ կողմում, դիզայնի մեջ կիրառվող լուսավորությամբ սյուներ:
Կահույքի կազմակերպում միջանցքում
ենյակներում ավելի շատ տարածքներ լինեն եւ չեն ծնում սենյակի պահարանները, մուտքի դահլիճը հարմար ները, դա արմար ներ
Երկար պատի վրա տեղադրվելու է մեծ զգեստապահարան:
էլ ամբողջովին չմտնեց էլեկտրոնային գրքեր եւ հավաքում է տուն տան գրադարաը, ետաքրքիր որոշում կլինի, եեարքիր որ կլինի, եերանցքում րրրրրր
Անկյունում կտեղավորվի անկյունային դարակներ:
Սենյակ պատշգամբի երկաթով
Դահլիճով մենք մտնում ենք սենյակ մեծ դռան հետ: Սովորաբար այս սենյակը օգտագործվում է հյուրասենյակի կամ սրահի տակ: Սենյակը շատ մեծ չէ, բայց քառակուսի:
թ եթե պատուհանի շրջանակները հեռացնեք եւ ապամոնտաժեք պատուհանի մասը, կարող եք երկկաարացնե ենեակը եկ
Միշտ չէ, որ երեք սենյակների վարձակալների համար: Հաճախակի պատշգամբներում կազմակերպում են աշխատանքային գրասենյակներ: Ստացվում է, որ նրանք գտնվում են այնպիսի իրավիճակում, երբ ճանապարհներն են յուրաքանչյուր քառակուսի մետր:
Ես կվերադառնամ ձեր վերեւից պատշգամբին, եւ մենք նկատում ենք երկու ինտերակեսի դռներ, մշակող ДСК-1- ի վերջնական վերանորոգման ստանդարտ պլանավորման մեջ
կարող եք մի ր ծեծել դռան ճանապարհը: Մի փոքր կամար պատրաստելը եւ սովորական դռները փոխեք սահելու համար:
Երկու դռներ շատ տեղ են ուտում: Եվ եթե մեկ ք եք պատրաստում, կարող եք անկունային կաբինետը դնել ենայկի անկյուն
ե երբեմն ապամոնտաժվում է ամբողջ պատին: Եվ պարզվում է սենյակի փոխարեն, միջանցքի հետ մեկ միավորի մեջ միացված ընդարձակըեն 9նարձակըեն
Խոշոր սենյակ պատշգամբով կոշիկով
անդարտ մեծ սենյակ, որն ունի պատշգամբ: Չափը երկար պատի վրա 5.56 ւ եւ կարճ ժամանակահատվածում 3.22 ք.մ. Այն կարող է նախատեսված լինել ինչպես ծնողների, այնպես էլ մանկական սենյակի համար:
եա մեկուսացված է, ատերը կարող են կցված լինել պաստառներով: Дисплей ուցադրել վարդակը պատշգամբում եւ արարա արակը ատշգամբում եւ ւարարա արակը ատշգամբում եւ կաերա
Այն պատերը, որոնք մենք հիշում ենք սովետական \ u200b \ u200b ժամանակներից, դառնում են ավելի ու ավելի քիչ տարածված: Փոխարենը, երկար DRESOM- ները հաճախ հայտնվում են բնակարանի նմուշներում եւ ինտերիերում:
այց ծաղիկները երկուսն էլ նորաձեւության մեջ էին, այնպես որ դեռ զարդարում ենք մեր բնակարանները:
Սենյակ առանց պատշգամբի
Երրորդ սենյակում պատշգամբ չկա: Մեծ եւ լայն պատուհան: Չափը մեկ պատի վրա 4.34 ք.մ. Եվ պատին `3.22 ք.մ.
ավ ննջասենյակ: Խիտ մութ վարագույրներ, օգնում է այրել առավոտյան արեւից եւ հանգստյան օրը քնել փափուկ մահճակակկակալի վր
ատի վրա մեծ նկարներ ի սկզբանե նայում են մահճակալին:
ենյակում կաբինետը ավելորդ չի լինի:
Լոգանք եւ զուգարան 3 սենյականոց բնակարանում
Մենք թողնում ենք սենյակից եւ գնում ենք խոհանոց: Միջանցքի ճանապարհին մենք ընկնում ենք դռան աչքի վրա լոգանքի եւ զուգարանի մեջ, եւ ճիշտ միջանցքը դատարկ է, բայց շատ հարմար կաբինետ:
П-44Т արք
Շենքի տարեթիվ. 1997 թվականից: ժամանակ
Պատի նյութ. Վահանակ, որը գտնվում է «աղյուսի տակ»
Բաժինների քանակը (մուտքեր). 1-8
Հարկերի քանակը. 9-25, ամենատարածված տարբերակները `14, 17
Առաստաղի բարձրությունը. 2.70–2.75:
Վերելակներ. եւոր եւ եռնափոխադրող ուղեւոր, 20-25 արկանի բաժիններում (մուտքեր) — 2 եռ-ուղեւոր եւ ուղեւոր
Պատշգամբներ. Ապակեպատ լոգաներ 1 սենյականոց բնակարաններում: Ապակեպատ լոջիա եւ Erkers 2 եւ 3 սենյականոց բնակարաններում (վերջում եւ անկյունում 2- եւ 3 սենյականոց բնակարաններ նույնպես կիսամյակներ)
Հատակին բնակարանների քանակը : 4
Մոսկվայում կառուցվել են Р-44T շարքի պանելային տներ, ինչպես նաեւ զանգվածային զարգացման նոր ոլորտներում, Մերիինսկի պուրակ, Հյուսիսային եւ Հարավային Բուտովո, Սոլնցեւո, Միտինո, Պոզ: Հյուսիսային, Նովոկոսինո, Նովոկոսինո, Նեչուկովո, Նեկրասովկա, Ժյուկբինո, Լյուբինո եւ հին շրջաններում, որտեղ արտադրել / արտադրեց հինգ հարկանի շենքերի, քայքայված եւ ոչ ֆոտոշարքների, Բեսկուդնիկի, Մեդվեդկովո, Իզմաիլովո, Լեֆորտովո, Պերովո, Նագաթինո, Հարավային Չերտանովո, Զյուզինո, Բալ, Կունցեւո եւ շատ ուրիշներ: Նաեւ շատ ոլորտներում Р-44T շարքի տանը տեղադրվել են կետ:
Մոսկվայի Մոսկվայի շրջանում Բալաշխայի, երկաթուղու, Լոբնայի, Կրասնոգորսկի, Լյբերսցի, Մոսկվայի, Կոտնելիի, Ռեֆլովի, Օդերցի, Խիմկի, Շչերցայի, Ռեստրովի, Օդերցի, Խիմկի, Շխերբին, Շխերցի, Շխերցի, Շխերցի, Շխերցի, Շխերցի, Շխերցի, Շխերցի, Շխերցի, Շխերցի, Շխերցի, երցի, կառուցած նոր շենքի նոր շենքի շրջանում: Արջուկ լճեր, POS: Կապույտ, der.Այր, եր: Пютино.
Մոսկվայում կառուցված տների քանակը. Մոսկվայի տարածաշրջանում մոտ 600-ը `Մոսկվայի եւ Մոսկվայի մարզի նոր շենքերի շուկայում, այս շարքը ամենատարածվածներից մեկն է: Միեւնույն ժամանակ, սոցիալական տների մասնաբաժինը կազմում է մոտ 50%:
Կարգավորող ծառայության կյանքը տանը (Ըստ արտադրողի — DSC-1) — 100 արի
1 սենյականոց բնակարանների քառակուսի (4 չափս). Ընդհանուր, 37-39 քմ: մ., Ապրում. 19 առակուսի: մ., Խոհանոց, 7-8.4: մ.
Քառակուսի 2 սենյականոց բնակարան (4 չափս).Ընդհանուր, 51-61: մ., Ապրում է, 30-34 քմ: Մ., Խոհանոց, 8.3-13.2 հրապարակ: մ.
3 սենյականոց բնակարանների քառակուսի (6 չափս). Ընդհանուր, 70-84: մ., Ապրող, 44-54: Մ., Խոհանոց, 10-13: մ.
Մեկուսացված P-44T արքի տների բոլոր սենյակները մեկուսացված են
Լոգարաններ 1 սենյականոց բնակարաններում `համակցված, 2- եւ 3 սենյականոց բնակարաններում` առանձին, լոգարաններ, ստանդարտ, 170 սմ երկարություն:
աններ: նկատար: Աղբի.Յուրաքանչյուր հարկում բեռնվող փականով
Խոհանոցի ափսեի տեսակը. Էլեկտրական
Պատերը: Բացօթյա երկաթբետոնե եռաշերտ վահանակներ (բետոն — մեկուսիչ պոլիստիրոլ) 30 սմ ընդհանուր հաստությամբ (որի ջերմամեկուսացումը հավասար է աղյուսի պատին `90 սմ հաստությամբ): Արտակարգ եւ ինտերիեր 16 եւ 18 սմ հաստությամբ: («սենյակում») երկաթբետոնե թիթեղներ, 14 սմ հաստությամբ:
Փոխադրողներ. Երկայնական փոխկապակցվածություն եւ լայնակի բոլոր (ինտերակերմ)
Բաժնի տեսակը. Դեմքի, ւ եւ պտտվող (անկյունային): Մուտքը, որտեղ գտնվում է էլեկտրական պանելը, նի մուտք 2 կողմերից
աժնում (մուտքի) քայլերի քանակը 7, այլ լայնություն (հեռավորությունը երկու հարակից վագոններիարարակից վագոններիարարակից վագոններիարարաարարա)
Երեսպատման, սվաղի բացօթյա պատեր.
Արտաքին պատի գույների ընտրանքներ. Մուգ նարնջագույն, թեթեւ կարմիրներ, ստորին հատակներ — մոխրագույն, erkers եւ կիսաեզրիչներ — սպիտակ
Տանիքի տեսակը, հարթ շրջանակի կամ շրջանակի ալիկապատ արտադրություն Braas DSC-1, գույներ, կանաչ, շագանակագույն
Տարբեր հատկանիշներ. P-44t ների մի շարք տարբերվում են նախորդից. Р-44 սերիան (որը կառուցվել է 1979-1999 թվականներին) պատերի ջերմամեկուսացումով, միջանցքում օդափոխման տուփ, իսկ ոչ թե խոհանոցում), Erkers եւ կիսակառույցներ, ինչպես նաեւ ճանաչելի արտաքին ձեւավորում աղյուսի տակ
Այլ առավելություններ. Ձայնամեկուսացման, ջերմաստիճանի հսկիչներով ջեռուցման գործիքներ, պղնձի էլեկտրալարեր, տեխնոլոգիա «փակ համատեղ (կարի)», կապիտալի հզորության եւ հրդեհային դիմադրության համաշխարհային ստանդարտներ (1-ին դասի բացման) Ձեղնահարկ, վերելակի հանք; ջրհեղեղի, հրդեհի ազդանշանային համակարգ): Շինության արագ տեմպը (1-ին հարկ 3 օրվա ընթացքում), www.1 ասնագետներ: Ru- ն չի բացահայտել այս շարքի երկարատեւ տների մեկ դեպք:
երություններ Առանձնացված շենքերում արտաքին պատերի տեղադրման որակը
Արտադրող DSC-1 (Ռուսաստանի շինարական արդյունաբերության խոշորագույն ձեռնարկություն)
Դիզայներ : MNIITP (Tyology Tyology- ի եւ փորձարարական դիզայնի մոսկովյան հետազոտությունների ինստիտուտ)
աագծման նութագրերը եւ P-44T արքի տների տեսքը ատ առումներով, րոնք նման են P-44M երիայի տների, 9000
Р-44T սերիայի առաջին տունը կառուցվել է 1997 թվականին փողոցում: Մարշալ Վասիլեւսկի (Շուկինո): Մոսկվայում առավել ճանաչելիներից մեկը ռուբթսովսկայայի գագաթին սպյուսերով բնակելի համալիր է, напоминание Castle- ի տեսքով, որը կառուցված է Р-44T շարքի բլոկային հատվածներից
Այն սկսեց կառուցվել 1997 թվականից: Եւ ներկաներին: Այն ունի իր ձեւափոխումը, որը դրանից տարբերվում է միան արբերվում է միան աակներվում է միան ատակների է ան ատակների ան ատակների ան ատակների ան ատակների: աակների
Дом П-44Т վահանակը բաղկացած է չորս բնակարանների անկյունից եւ սովորական հատվածներից, որտեղ 1 սենյականոց բնակարան ունի բնակելի չափ, 19 մ 2, 7-9 մ 2, բաղնիքները համակցված են.2 սենյականոց բնակարան — 30-34 2, խոհանոց — 8-13 2, առանձին լոգարաններ; 3 սենյականոց բնակարան — 44-54 մ 2, խոհանոց — 10-13 մ 2, լոգարանը նույնպես առանձին է: Մեկուսացված Р-44T շարքի տների բոլոր սենյակները մեկուսացված են: Բոլոր բնակարաններում տրամադրվում են Erkers եւ ընդարձակ Лоджии: Ներքին պատերը բաղկացած են նախնական բետոնե վահանակներից `16 սմ հաստությամբ եւ 18 սմ հաստությամբ: Фак ակատից մի կողմից սալիկապատված«աղյուսի տակ», սկսած երկրորդ հարկից: Միջնապատեր բազմաթիվ նյութերից, հանելուկ կամ փրփուր բետոնե բլոկներ, մետաղական շրջանակի գիպսաստվարաթղթե թերթ, գիպսաստ բետոնե բարով վահանակներ, բայց ամենից հաճախ ծանրաբլիթը` 8 սմ հաստությամբ:
Բնակելի շենքերի շարք Р-44T Այն ունի տարբեր թերություններ, ինչպիսիք են նեղ սենյակը երկու սենյականոց գծային բնակարաններում (առաջին կողմի պատուհաններով), վահանակների միջեւ կարերը պահանջում են լրացուցիչ խոստում (հակառակ դեպքում դա ցուրտ կլինի): Այս տիպի պույների հնարավորությունները շատ լուրջ սահմանափակ են: Գրեթե բոլոր պատերը կրողներ են: Այնուամենայնիվ, հետեւյալ հնարավորությունները պահպանվում են թույլատրելի վերակառուցմամբ, առանց օժանդակ կառույցների վնասակար ազդեցության.
- րեք սենյականոց բնակարաններում մեծ սենյակի եւ միջանցքի միջեւ բաժանումն անկատելի է:
- Сантехблок- պատրաստված է սվաղից եւ կարող է ապամոնտաժվել եւ (կամ) ել:
- 2007 г. ականից հետո տներում, խոհանոցի եւ բնակարաների սենյակի միջեւ կրող վահանակների կառուցումը նրառում աեր կառուցումը նրառում է աակնիշ, աա ատուկ ն, աատու
Այնուամենայնիվ, այս շարքը ունի մի շարք առավելություններ. Erkers, պղնձի էլեկտրալարեր, օդափոխություն է ավելացվում, վերին թափվող օդափոխության արտանետում, տաք ջրի մատակարարում, տեսքը ձեռք է բերում հատուկ գույն, կարմիր, erkers եւ logias ներկված սպիտակ գույնով: Р-44T շարքի տներում բնակության համար ձեղնահարկի հատակը հասանելի է: Հայտնվեց անվտանգության ժամանակակից համակարգ , որը պատասխանում է գրասենյակային տարածքի բացմանը, հեղեղի կամ կրակի առաջացման սպառնալիքներին:
Յուրաքանչյուր մուտք տեղադրվել է մեկ ուղեւոր եւ մեկ բեռնատար մեքենա վերելակ, 20-25 հարկանի հատվածներում (մուտք) — 2-բեռ ուղեւոր եւ ուղեւոր: 1-ից 8-ի մուտքի քանակը: Աստիճաններն անտեղի են, հրդեհային պատշգամբ չկա: Աղբի ցանցը գտնվում է աստիճաններով, կայքում բեռնվող փականով:
P-44T արքի սպասարկման ժամկետը մոտ 100 արեկան է, ուստի արժանի չէ հույս ունենալ քանդման համար, ապագայում:
Дома серии П44Т, планировка квартир с размерами.Серия П44Т Серия домов П 44Т 1 комнатная
- Производитель: DSC-1
- Конструкторы: МНИИТП
Серия П44Т состоит из 14-17-этажных прямых и угловых блочных секций с различными вариантами кровли: с мансардным выводом, с плоской крышей, с «наклонными» фризами, что позволяет составлять здания различной конфигурации и силуэта. Может иметь высоту 9-25 этажей. Новым в решении фасадов серии стало сочетание панелей, облицованных матовой керамической плиткой «Под кирпич» (ярко-оранжевого, реже песочного цвета), с окрашенными поверхностями эркеров, лоджий, карнизов и других архитектурных деталей.В торцах секций запроектированы эркеры треугольной формы. В проекте предусмотрено несколько вариантов остекления балконов и лоджий на северном фасаде. Серия П44Т стала одной из основных для строительства муниципального жилья в Москве строительной мощностью более 1 миллиона квадратных метров. м. в год.
Улучшенные системы отопления, водоснабжения и вентиляции домов по сравнению с серией П44. Стояк Веншахца, который в П44 находился на кухне, перенесен в коридор (рядом с ванной и туалетом).
Дом П44Т состоит из угловой и рядной секций по четыре квартиры, аналогично базовой серии П44. В отличие от нее, в кухнях двух- и трехкомнатных квартир П-44Т есть большие эркеры трапециевидной формы. При этом кухня односторонняя двухосная, а также гостиная (2х и 3х комнатная) имеют треугольные полукруглые стойки. Увеличена и площадь квартир.
Следует понимать, что П-44Т, по сути, является группой серии — есть и применяются проекты домов П-44ТМ или ТМ-25, а также П-44К, которые имеют ряд различия в планировке квартир, а также в планировке типовых этажей.Более того, иногда жилые дома устраивают из нескольких вариантов секций, например, две секции П-44Т и четыре секции П-44К. Возможны и другие варианты совмещения секций.
Типовая планировка квартир домов этой серии представлена ниже.
Чаще всего жилой первый этаж. Высота потолков в доме 2,70 м. Лифты в доме: пассажирский имеет грузоподъемность 400 кг, а грузовой — 630 кг.В доме на 20 и 25 этажи один пассажирский и два грузовых лифта (модификация П-44Т / 25).
Застекленные лоджии начинаются со второго или третьего этажа. В двух или трехкомнатной квартире также есть эккеры и полусекверы. На одном этаже четыре квартиры.
Строительство таких домов началось с 1997 года и успешно возводится сегодня.
Дома типа П-44Т строятся, как и в новых подмосковных районах крупных застроек, таких как: Некрасовка, Новая Кожа, Жулебино, Новокосино, Митино, Люблин, Марьинский парк, Южное и Северное Бутово, Ходянка и др. Поз.Северный. Также построены в старом Подмосковье, где сносят пятиэтажки и ветхие дома, это: Южное Чертаново, Нагатино, Перово, Зюзино, Очаково, Солнцево, Кунцево, Черремушки, Фили, Ховрино, Бескудниково, Коптево, Дегунино, Медведково, Свиблово, Юрлово, Измайлово, Алексеево, Лефортово, Зеленоград, Щукино, ул. Нижний Новгород, ул. 1905, ул. Борисовский пруд. Дома типа П-44Т строятся и в других районах Москвы (в том числе в Средней Азии).
Новостройки Н-44Т строятся не только в Москве, но и в городах Подмосковья.Например: Балашиха, Железная дорога, Люберцы, Лобня, Красногорск, Реутов, Москва, Котельники, Щербинка, Одинцово, Химки, в П. Медвежьих озерах и р. Синий, тоже на деревьях. Пыхино и дер. Брихово, и в ЖК «Бутовский парк».
В Москве таких домов около 600, да и в Подмосковье. — Около 200 (даны в стадии строительства). По заявлению производителя, срок эксплуатации такого дома составляет 100 лет.
Двухкомнатная квартира: жилая площадь может достигать 19 квадратных метров.м, площадь кухни до 8,4 кв. м. Но не менее 7,4 (в доме на 25 этажах кухня около 9 кв. М) общая площадь может достигать 40 кв. м. Но не менее 37 кв. м.
Двухкомнатная квартира: Жилая площадь может достигать 34 квадратных метров. м. Но не менее 19, площадь кухни до 13,2 кв. м. Но не менее 8,3 кв. м. (в доме на 25 этажей кухня от 12,8 до 13,8 кв. м), общая площадь достигает 64 кв.м. Но не менее 52 кв. м.
Трехкомнатная квартира: Жилая площадь может достигать 54 квадратных метров. м. Но не менее 44 кв. м., площадь кухни до 13,2 кв. м. Но не менее 10 кв. м., общая площадь достигает 84 кв. м. Но не менее 70 кв. м.
Комнаты в домах серии П — 44Т, все изолированные. Раздельные санузлы делаются только в двух и трехкомнатных квартирах, в однокомнатной квартире Санузел совмещен.Размер ванны 1,7 м. (Стандарт).
Лестница без электроснабжения, в домах на 20 и 25 этажей (вид P-44T / 25) Есть общие балконы. Мусоропровод с загрузочным клапаном имеется на всех этажах.
Плита кухонная электрическая. Естественная вытяжная вентиляция и форточки в коридоре и санузле.
Наружные стены: трехслойные, толщиной 30 см, панели из железобетона (теплоизоляция таких стен равняется кирпичу толщиной 90 см по данным производителя). Межкомнатная и межкомнатная опора — панели из железобетона толщиной 16-18 см.Перегородки из гипсокартона толщиной 8 см. Крупногабаритные перекрытия по помещению, плиты из железобетона толщиной 14 см.
Продольные межкомнатные несущие стены (в торцевых квартирах, в том числе межкомнатные). Все стены (межсетевые, межсетевые и внутренние) имеют поперечную опору.
Типы секций: рядные (рядные, П-44-1), концевые и угловые (поворотные). В подъезде с электротельфером два входа.
Ступени в подъезде: семь, ширина одной ступеньки (шаг — расстояние между двумя стенками вагона), равна 300 сантиметрам (в трех центральных секциях секции), в остальных секциях 360 сантиметров. .
Варианты цвета наружных стен: песочный, темно-оранжевый и красный. Первые этажи могут быть: белого цвета или серого цвета с отделкой «под камень».
Кровля из Braas DSK1 плоской черепицы. Над верхним (последним) жилым этажом находится технический этаж.
Отличительная черта Дома типа П-44Т от более устаревшего вида П-44 (построенных с 1979 по 2000 год) отличается: более высокая теплоизоляция, более увеличенная кухня, за счет удаления вентиляционного бокса. в коридоре отделка наружных стен под кирпич и эркеры.
Также к достоинствам относятся: медная разводка, отопительные приборы с регулировкой температуры, первые классы мировых стандартов по капитальной вместимости и огнестойкости, подача горячей воды с верхним разливом, быстрое строительство (пол за три дня).
Но есть и недостатки у такой серии: качество монтажа отдельных элементов наружных стен в отдельно стоящих домах, двухкомнатных квартирах (норм, с односторонними окнами), узкой маленькой комнате.
В некоторых домах типа П-44Т можно купить квартиру с муниципальной отделкой.
на ул. Маршала Василевского в 1997 году был возведен первый дом от типа П-44Т. На набережной Яузы Рубцовского района из блоков секций П-44Т и П-44М был построен один из самых ярких уличных домов Москвы. . По типовой базе вида П-44Т в 2005 году были созданы типовые блоки — сечения из вида П-44К. , где на одну ступеньку меньше в каждой секции (6 ступеней против семи), конечно только в однокомнатных и двухкомнатных квартирах.На сегодняшний день все активнее такие виды строят на МКАД.
Ниже — большое фото и планировка квартир этой серии (нажмите на фото, чтобы увеличить и дополнить. Информацию).
Его начали строить еще с 1997 года. И по настоящее время. Имеет собственную модификацию, которая отличается от нее только этажностью — это серия П-44Т / 17.
Дом П-44Т панельный, состоит из угловой и рядной секций по четыре квартиры, где 1-комнатная квартира имеет размер жилого помещения — 19 м 2, кухня — 7-9 м 2, санузлы совмещены; 2-комнатная квартира — 30-34 м 2, кухня — 8-13 м 2, санузлы раздельные; 3 комнатная квартира — 44-54 м 2, кухня — 10-13 м 2, санузел тоже раздельный.Все комнаты в квартирах домов серии П-44Т изолированные. Во всех квартирах предусмотрены эркеры и просторные лоджии. Внутренние стены состоят из сборных железобетонных панелей толщиной 16 и 18 см. Наружные стеновые трехслойные навесные панели с изоляцией из пенополистирола и с теплоотражающей металлизированной пленкой внутри утеплителя, общая толщина 30 см; Со стороны фасада кафель «под кирпич», начиная со второго этажа. Перегородки из многих материалов: пазл или пеноблоки, гипсокартонные листы на металлический каркас, гипсокартон, но чаще всего твердобетон, все одной толщины — 8 см.Перекрытие — железобетонные плиты толщиной 14 см.
Серия жилых домов П-44Т Имеет различные недостатки, такие как узкое помещение в двухкомнатных линейных квартирах (с окнами на первую сторону), швы между панелями требуют дополнительного залога (иначе будет холодный). Возможности в доме этого типа очень серьезно ограничены. Практически все стены — несущие. Однако при допустимой перепланировке без ущерба для несущих конструкций сохраняются следующие возможности:
- В трехкомнатных квартирах нежелательная перегородка между большой комнатой и коридором.
- Сантехблок изготавливается из гипса и может быть демонтирован и / или модифицирован. №
- В домах после 2007 года в несущих панелях между кухней и помещением в корпусах предусмотрена специальная ниша для исполнения дверной штанги («Вафля»), которую можно демонтировать.
Тем не менее, у этой серии есть ряд преимуществ: в макеты добавлены эркеры, медная разводка, вентиляция, вентиляция естественная вытяжка, горячее водоснабжение с верхним переливом, внешний вид приобрел особого цвета — красный с песочным. , эркеры и лоджии выкрашены в белый цвет.Для проживания в домах серии П-44Т доступен мансардный этаж. Появилась современная система безопасности, которая реагирует на открытие офисных помещений, затопление или угрозы возникновения пожара.
В каждом подъезде установлен один пассажирский и один грузопассажирский лифт, в 20-25-этажных секциях (подъездах) — по 2 грузопассажирский и пассажирский. Количество подъездов от 1 до 8. Лестница лишняя, противопожарного балкона нет. Сетка для мусора находится на лестнице, с загрузочным клапаном на участке.
Срок службы серии П-44Т около 100 лет, так что надеяться на снос в ближайшее время не стоит.
Эти размеры были сняты лично мной в моей квартире по окончании монтажа дома. Касательно размеров стоит отметить, что чем выше этаж, тем больше площадь квартиры, так как стены на верхних этажах темнее. В моем случае площадь квартиры больше 0,5 квадратных метров от квадрата, указанного в предварительном договоре купли-продажи квартиры, и это приятнее, чем получить минус в районе квартиры, расположенной на одном из нижних этажей.
Теперь перейдем непосредственно к планировке квартиры и сравним ее с другим предложением трехкомнатной квартиры в доме 111-й серии от компании GWS. Размеры трехкомнатной квартиры представлены на следующем рисунке:
Сравнение 3-х комнатных квартир серии П-44Т и 111м
Площадь этих квартир практически одинакова — кому больше нравится. Это дело вкуса и потребностей, но мне больше понравилась планировка Р-44Т.Почему?
1. Расположение санузла.
В П44-т санузел находится в коридоре возле коридора, а в 111-м между двумя комнатами. Во втором варианте в комнатах возле ванной всегда будет слышен шум воды, открывающейся и закрывающейся двери, что нарушит тишину в этих комнатах.
2. Кухня.
В P44-T и 111 кухни имеют одинаковые квадраты, но в первой версии кухни с Erker.Благодаря эркеру на кухне всегда будет светло, с кухни будет более красивый вид.
3. Коридор.
В П-44т коридор шире и короче, что позволит установить в нем хороший шкаф для несезонной одежды и прочего, а в 111-м коридор узкий и длинный, что не позволяет использовать его с образцовый.
4 комнаты
В П-44т мне понравилось то, что комнаты более широкие, что позволяет более полно использовать их площадь, а в 111-м комнатах достаточно узкие, что не позволит разделить мебель по обе стороны от комнат.Также в P-44T все комнаты разного размера, благодаря этому у вас будет больше «маневров» при выборе назначений каждой из трех комнат.
5. Балконы
В Р-44т два довольно просторных балкона, а в 111-м он один. Стоит обратить внимание на то, что стоимость квадратного метра холодного помещения, как правило, вдвое ниже, чем жилого, а значит, вы платите в два раза меньше за балконы и получаете больше квадратных метров.
6.
Если есть вопросы, то задавайте их в комментариях — отвечу!
Макет П-44Т с габаритами
Планировка квартиры п44т с возможностью перепланировки
Планировка трехкомнатных квартир серии П 44Т
Дозирующая шкала
Обычно бывает площадью около 60-64 кв.м. На кухне большой эркер, а в каждой из комнат просторный балкон.По сути, это та же трешка, только с «герметичной» одиннадцатиметровой прямой комнатой и прилегающей к участку коридором.
Линейный циферблат П-44Т
Площадь односторонних трехкомнатных квартир колеблется в районе 52 кв. М (51-53 кв. М). Это небольшие коридоры и балконы.
Двухкомнатная квартира П-44 т.
Площадь Одера в П-44Т составляет порядка 36-38 кв.м. В них балкончик и совмещенный санузел.
Трехкомнатная квартира П-44Т.
По площадям и конфигурациям трехкомнатных квартир в серии П-44Т наблюдается наибольший разброс (примерно от 73 до 86 метров). Планировочных решений Там тоже много. Кухни в угловых секциях трешки не имеют эркеров, а их площадь обычно не превышает 10 метров. При этом 3-х комнатные квартиры в обычной и конечной частях П-44Т могут похвастаться кухнями с эркером и общей площадью от 12 до 14 кв.м.
ТРИКА С ЭРКЕРОМ В КОМНАТЕ (ФАКТ FACE P44T)
П-44Т серии
Год постройки: С 1997г. Время
Материал стены: панель с облицовкой «под кирпич»
Количество секций (подъездов): 1-8
Этажность: 9-25, наиболее распространенные варианты — 14, 17
Высота потолка: 2,70-2,75 м.
Лифтов: пассажирских и грузопассажирских, в секциях 20-25 этажей (подъездов) — 2 грузопассажирских и
пассажирских.Балконы: Застекленные лоджии в 1-комнатных квартирах.Застекленные лоджии и эркеры в 2-х и 3-х комнатных квартирах (в торцевых и угловых 2-х и 3-х комнатных квартирах также полуплит)
Количество квартир на этаже : 4
Панельные дома типовой серии П-44Т в Москве строились как в новых районах массовой застройки: Марьинский парк, Северное и Южное Бутово, Солнцево, Митино, пос. Северное, Новокосино, Новое Кожуково, Некрасовка, Жулебино, Люблино и в старых районах, где производился / производился массовый снос пятиэтажных домов, ветхого и неблагоустроенного жилья: Щукино, Зеленоград, Ховрино, Бескудниково, Коптево, Свиблово, Медведково. , Лефортово, Перово, Нагатино, Южное Чертаново, Зюзино, Вишня, Кунцево и многие другие.Также на родине серии П-44Т во многих областях были построены точечные.
В Московской области строятся новостройки серии П-44Т в городах Балашиха, Железнодорожная, Лобня, Красногорск, Люберцы, Москва, Котельники, Реутов, Одинцово, Химки, Щербинка, а также в пгт. . Медвежьи озера, пос. Синий, дер. Брат, дер. Пютино.
Количество построенных домов в Москве: около 600, в Подмосковье — около 200. На рынке новостроек Москвы и Подмосковья эта серия является одной из самых распространенных.При этом доля социальных домов составляет около 50%.
Нормативный срок службы дома (по данным производителя — DSC-1) — 100 лет
Площадь 1-комнатных квартир (4 площади): общая: 37-39 кв. м., жилая: 19 кв. м., кухня: 7-8,4 кв. м.
Площадь 2-комнатных квартир (4 площади): общая: 51-61 кв. м., жилая: 30-34 кв. м., кухня: 8,3-13,2 кв. м.
Площадь 3-х комнатных квартир (6 размеров): общая: 70-84 кв.м., жилая: 44-54 кв. м., кухня: 10-13 кв. м.
Все комнаты в квартирах домов серии П-44Т изолированные
Санузлов : В 1-комнатных квартирах — совмещенных, в 2-х и 3-х комнатных — раздельных, ванные: стандартные, длина 170 см.
Лестница: Неподвольная. Мусор: с загрузочным клапаном на каждом этаже
Тип кухонной плиты: Электрический
Стены: Наружные железобетонные трехслойные панели (бетон — пенополистирол — бетон) общей толщиной 30 см (теплоизоляция которых равна кирпичной стене толщиной 90 см) Аварийные и межкомнатные несущие — железобетонные панели толщиной 16 и 18 см.Перегородки — гипсокартон толщиной 8 см. Перекрытие — крупногабаритные («по комнате») железобетонные плиты толщиной 14 см.
Несущие: Продольные межкорпусные и поперечные Все (межкомнатные и межкомнатные)
Тип секции: Лицевая, рядная и поворотная (угловая). Подъезд, в котором находится электрощит, имеет вход с двух сторон
Количество ступеней в секции (входе) : 7, ширина ступени (расстояние между двумя соседними вагонами): 300 см (в 3 центральных пролётах каждой секции), 360 см (в остальных)
Облицовка, наружные стены штукатурка: облицовка «под кирпич», нижние этажи — облицовка «под камень»
Варианты окраски наружных стен: темно-оранжевый, светло-рыжий, нижние этажи — серый, эркеры и полуприцепы — белый
Тип крыши: Плоскогибочная или черепичная, производство BRAAS DSC-1, Цвета: Зеленый, Коричневый
Отличительные черты: Серия домов П-44Т отличается от своей предшественницы — серии П-44 (построенной в 1979-1999 гг.) Повышенной теплоизоляцией стен, вентиляционным боксом в коридоре (а не в помещении). кухня), остекление лоджий, эркеров и полукрестов, а также узнаваемая внешняя отделка под кирпич
Прочие преимущества: Повышенная звукоизоляция, нагревательные приборы с контролем температуры, медная разводка, технология «закрытый шов (шов)», мировые стандарты капиталоемкости и огнестойкости (1-й класс), современная система безопасности (реакция на открытие двери подвала, эл., мансарда, лифт шахтный; сигнализация затопления, пожара).Быстрые темпы строительства (1 этаж за 3 дня): специалисты WWW .1 DOM. RU не выявил ни одного случая долговременных домов этой серии.
Недостатки : Качество монтажа наружных стен в отдельно стоящих зданиях
Производитель : ДСК-1 (крупнейшее предприятие строительной отрасли России)
Конструктор : МНИИТП
Конструктивные характеристики и внешний вид домов серии П-44Т во многом аналогичны домам серии П-44М,
Первый дом серии П-44Т построен в 1997 году по ул.
