П 44 т планировка 3 комнатная: Дом П44: Перепланировка 3-комнатной квартиры — 5 дизайн-проектов трехкомнатной квартиры в доме серии П44
Дом П44: Перепланировка 3-комнатной квартиры — 5 дизайн-проектов трехкомнатной квартиры в доме серии П44
П-44, пожалуй, самая часто встречающаяся в Москве серия панельных домов. Спроектированы эти дома МНИИТЭПом, и строились с конца 70-х до конца 90-х годов прошлого века. Потом на смену этой серии пришли улучшенные модификации. Многоэтажки П-44 являются родоначальниками целого семейства многоквартирных жилых домов: П-44М, П-44Т, П-44ТМ, П-44К.
Наталья Преображенская | Бюро «Уютная Квартира»
Типовая серия П-44: планировка 3-комнатной квартиры
Особенности планировки: В домах серии П-44 обычно 16-17 этажей (реже 8-17), два и более подъезда, в каждой квартире, кроме тех, что на первом этаже, есть балкон. Высота потолков — 264 см.
Предлагаю рассмотреть стандартную трехкомнатную угловую квартиру в доме П-44. Ее площадь составляет 74 квадратных метра, из них жилая — 45 кв.м, кухня — 10 кв.
м. Почти все стены в квартире — несущие (кроме санузла, перегородок между кухней и коридором, первой комнатой и прихожей), что в целом дает мало возможностей для перепланировки и согласования. Тем не менее, как показывает практика, варианты организации пространства все же есть.
Важно: Все представленные в этой статье проекты перепланировок, кроме последней, необходимо согласовывать перед началом ремонта.
Наталья Преображенская | Бюро «Уютная Квартира»
Вариант 1: для родителей, ребенка и бабушки с дедушкой
Довольно распространенная для России ситуация, когда в одной квартире живут семья с ребёнком-школьником и родители одного из супругов. Чтобы разместить всех в трехкомнатной квартире с комфортом, в спальне мы выделили отдельную вместительную гардеробную, в детской — большой шкаф-купе, рабочее место и стеллаж для книг. В гостиной будет удобен угловой диван, который послужит и раскладным спальным местом.
В центре кухни расположили столовую зону, чтобы за столом могла уместиться вся семья.
Ванную и санузел в данном конкретном случае для заказчиков объединили, но их можно оставить и раздельными — ориентируйтесь на потребности своей семьи.
Наталья Преображенская | Бюро «Уютная Квартира»
2. Вариант 2: для родителей и двух разнополых детей-подростков
Ключевая задача этого проекта ремонта квартиры — чтобы у каждого из детей была своя комната с вместительным шкафом, спальным и рабочим местами. Поэтому обустраиваем две полноценных детских.
Гостиную зону выделяем в спальне родителей, для этого визуально зонируем пространство комнаты легкой шторой.
Санузел объединяем, слегка увеличив его за счёт прихожей, благодаря этому получается разместить и ванну, и душевую кабину.
Наталья Преображенская | Бюро «Уютная Квартира»
Вариант 3: для молодой семьи и родителей
В этом варианте планировки нам нужны две спальни.
Одну из них мы увеличиваем за счёт коридора, получая две одинаковых соседних комнаты.
В кухне получилось организовать и полноценную обеденную зону, и барную стойку для завтраков или коктейля.
Санузел объединили и успешно разместили всю необходимую сантехнику.
Наталья Преображенская | Бюро «Уютная Квартира»
Вариант 4: для родителей, старшего ребенка и двух детей-погодков
Для двух детей-школьников логично отдать самую большую по площади комнату. Поэтому мини-гостиная зона для друзей обосновалась в комнате взрослого мальчика-студента. Соответственно, под спальню для родителей мы отвели самую компактную комнату. А чтобы организовать в ней встроенный шкаф, пришлось забрать часть площади коридора.
Санузел совмещен, в нем легко уместилась вся необходимая сантехника, включая сушилку и стиральную машинку вертикальной загрузки.
Наталья Преображенская | Бюро «Уютная Квартира»
Вариант 5.
Для молодой семьи с перспективами
Самый приятный и простой вариант — когда в просторную квартиру въезжает пара с прицелом на пополнение. Планировка 3-комнатной квартиры в П-44 как будто для этого и создана. Здесь есть все необходимое: спальня, гостиная и еще одна комната, которая до появления детей может послужить гостевой спальней.
Перепланировка со сносом перегородок в данном варианте не нужна.
ВАША ОЧЕРЕДЬ…
Какие плюсы и минусы вы видите в предложенных вариантах перепланировки 3-комнатной квартиры? Что именно вы бы сделали по-другому? Делитесь вашими мнениями в разделе комментариев.
Спонсируемые
Badplanung & Badsanierung | Niederrhein
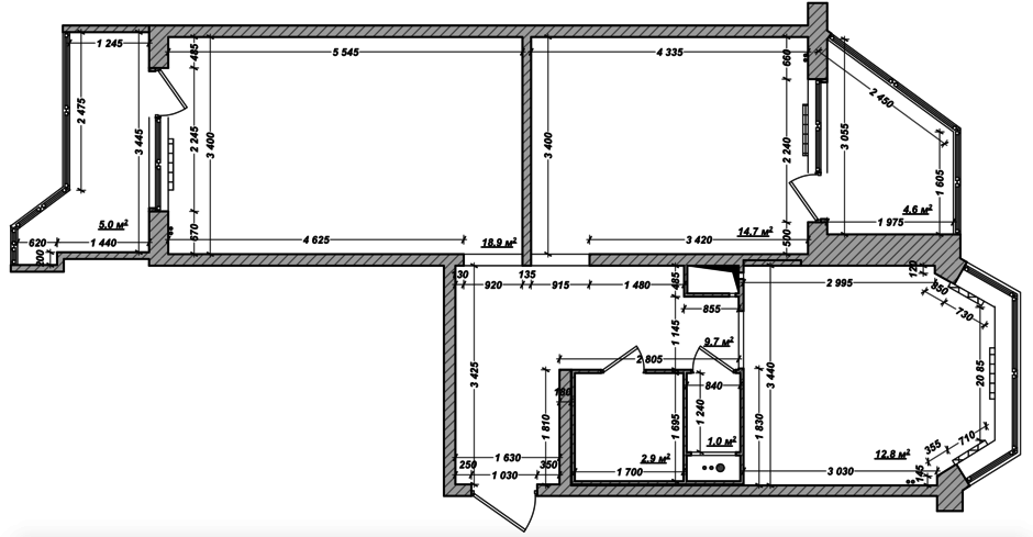
Дом П-44Т: Планировка 3-комнатной квартиры с размерами, дизайн-проекты ремонта квартир в домах серии П-44Т
С едва ли не самыми распространенными семнадцатиэтажками столицы и Подмосковья мне доводилось работать довольно активно
Трехкомнатная квартира в типовой серии П-44Т — это хороший семейный вариант: относительно просторная кухня с эркером и три комнаты, две из которых изолированы.
Также в квартире имеются два балкона, которые можно определить под функционально разные нужды. Одним из неудобств считаю разве что довольно большой и темный бесполезный коридор, но этот нюанс при разработке дизайн-проекта можно сгладить.
Дизайн-бюро «ПОРЯДОК ВЕЩЕЙ»
Исходные ограничения
Практически все стены в квартире несущие, поэтому кардинально поменять планировку 3-комнатной квартиры в доме П-44Т априори невозможно — такой вариант не согласуют в БТИ. Есть смысл упражняться лишь с функциональным наполнением помещений, созданием проемов и расстановкой мебели.
Ограничений на объединение санузла нет — можно оставить раздельным или совместить: все по желанию клиента. В предложенных планировках рассмотрены наиболее рациональные или удобные решения, не являющиеся, однако, единственно верными или возможными. Для удобства читателей на планах указаны размеры комнат.
ПОДРОБНЕЕ ОБ ИНТЕРЬЕРЕ С ФОТО…
Houzz тур: Яркая квартира с качелями для Вари и Тоси
Наталья Преображенская | Бюро «Уютная Квартира»
На плане: дом серии П-44Т, планировка (с размерами) 3-комнатной квартиры
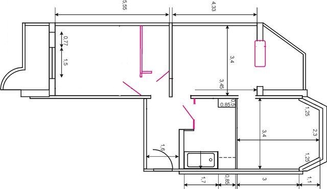
Вариант №1: семья со взрослой дочерью и сыном-школьником
Из пожеланий — максимум личного пространства и мест хранения для обоих детей, а также дополнительное спальное место для гостей.
Две изолированных спальни было решено отдать детям, а родители пожелали устроиться в гостиной на раскладном диване, пока дочь не «вылетит из гнезда». Стену, разделяющую коридор и гостиную-спальню, демонтировали с целью сделать пространство более светлым. Мальчику досталась большая комната — у него пока много игрушек и необходима игровая зона. Столовую зону на кухне расположили почти традиционно — у окна эркера, а роль гостевого спального места выполняет кухонный двухместный диванчик.
Наталья Преображенская | Бюро «Уютная Квартира»
Вариант №2: квартира для мамы и подростка
Пожелания — две комфортные спальни, небольшой гардероб для хозяйки квартиры, два рабочих места, свободная гостиная зона и просторный санузел.
Последний удалось получить за счет присоединения части коридора. Пришлось перенести вход в кухню (теперь он из гостиной), но для двух человек это достаточно комфортное решение. В лоджии при спальне хозяйки разместили небольшой шкаф для тканей, так как она занимается дизайном одежды.
Компьютерное рабочее место (кабинет мамы) было решено перенести на вторую утепленную лоджию в гостиной. А в детской разместили все необходимое для подростка: стеллаж с книгами, шкаф для одежды, большое угловое рабочее место, раскладной двуспальный диван.
Наталья Преображенская | Бюро «Уютная Квартира»
Вариант №3: молодая семья с дочкой, двумя собаками и кошкой
Пожелания — большой гардероб и туалетный столик в спальне, рабочее место для мужа, камин в гостиной, полноценная детская.
Стену, разделяющую коридор и гостиную, решили демонтировать. Но в процессе согласования проекта ремонта хозяева квартиры попросили визуально разделить мягкую и проходную зоны, родилась идея зонирующих колонн.
Электрический биокамин расположился на противоположной от мягкой группы стене. Параллельно рассматривали вариант каминной зоны с креслами на утепленной лоджии, но ее решили отдать под рабочее место. В детской помимо обычных функциональных зон сделали уголок для чтения.
По просьбе хозяев столовую часть спланировали в виде продолговатой барной стойки.
Наталья Преображенская | Бюро «Уютная Квартира»
Вариант №4: семья бизнесменов с тремя детьми-погодками
Хозяева хотели полноценную детскую для всех троих детей и большое количество мест для хранения, в том числе для объемной горнолыжной экипировки.
В этом проекте целых два гардероба: один в спальне родителей, второй буквально в гостиной. Это был своего рода эксперимент, который прошел на ура. Рабочее место родителей — на лоджии в гостиной. Вторую лоджию пришлось присоединить к детской: иначе было сложно разместить три спальных места, два рабочих места и полноценные платяные шкафы.
Важно: Лоджию в таких домах можно присоединить, только оставив часть подоконного блока (здесь бывший подоконник стал рабочим столом).
Наталья Преображенская | Бюро «Уютная Квартира»
Вариант №5: семья с четырьмя детьми — студенткой, сыном школьного возраста и малышами-близнецами
Требовалась перепланировка «трешки» в четырехкомнатную квартиру.
Исходную перегородку между коридором и гостиной демонтировали — сдвинули ее, поделив общее пространство пополам. В одной зоне расположилась спальня для старшей дочери с присоединенной лоджией, во второй — небольшая проходная гостиная зона. Большую спальню определили под детскую комнату. Как и в предыдущем проекте, лоджию присоединили к комнате, оставив часть оконной перегородки. Для младших сыновей спальная зона оформлена с помощью двухъярусной кровати с выдвижным механизмом, для старшего сына выбрали вариант с удобной односпальной кушеткой. Часть детской с помощью гипсокартонной перегородки и дополнительного проема отделили и определили под гардеробную, относящуюся к комнате родителей.
ВАША ОЧЕРЕДЬ…
Какие плюсы и минусы вы видите в предложенных перепланировках 3-комнатной квартиры? Быть может, вы сами живете в такой квартире? Какие задачи вы решали, создавая проект ремонта квартиры с перепланировкой?
Спонсируемые
Ihr Parketthaus aus Leidenschaft in NRW
Спонсируемые
Düsseldorf | Individuelle Lösungen für jedes Einrichtungsprojekt!
Планы дома с 5 спальнями и планы этажей
Звоните по телефону 800-482-0464
- Дом
- План дома
- Планы дома с 5 спальнями и планы этажей
Форма поиска
Если ваш выпускник колледжа возвращается домой после школы или к вам переезжают пожилые родители, то имеет смысл построить дом с 5 спальнями.
Дополнительные комнаты предоставят достаточно места для ваших детей старшего возраста или родителей, чтобы они могли въехать, не нарушая вашу частную жизнь. Более того, вы можете превратить любую из дополнительных спален во что угодно. Например, вам может понадобиться домашний офис, кабинет или комната для отдыха. Все, что вам нужно сделать, это приобрести любой из наших планов дома с 5 спальнями и использовать его для строительства дома своей мечты.
1599 Планы
Вид плана этажа 2 3
Plan 41406
2705 Heated SqFt
92’0 W x 66’7 D
Bed: 5 — Bath: 3.5
Compare
Plan 52961
4346 С подогревом, кв.фут
79’0 Ш x 96′ Г
Кровать: 5 — Ванная: 5,5
Сравнить
План 72226
04
04
040002 3302 SQFT SQFT
143’0 W x 68’0 D
Кровать: 5 — Ванная: 5,5
План 78150
3599.
Кровать: 5 — Bath: 5
Compare
Plan 82609
5293 Heated SqFt
93’8 W x 96’10 D
Bed: 5 — Bath: 4.5
Compare
План 40634
2745 С подогревом, кв.фут
53’0 Ш x 30’0 Г
Кровать: 5 — Ванна: 4
Сравнить
План 82370
2903 Кв.фут с подогревом
74’2 Ш x 68’7 Г 90905 6 —
3 Кровать Ванна: 3
Сравнить
План 79346
2963 Кв.ф. Баня: 3
Compare
Plan 80839
2985 Heated SqFt
78’4 W x 67’4 D
Bed: 5 — Bath: 3.5
Compare
Plan 80867
3152 Heated SqFt
77’10 W x 77’0 D
Bed: 5 — Bath: 3.
5
Compare
Plan 43315
3217 Heated SqFt
79′ 6 дюймов Ш x 112 футов 0 дюймов Г
кровать: 5 — ванна: 3,5
Сравнение
План 97655
3314 Огрел SQFT
64’4 W X 67’10 D
: 5 — 64’4 W X 67’10 D : 5 — 64’4 W x 67’10 D : 5 — 64’4 W x 67’10 D : 5 — 64’4 W x 67’10 D : 5 — 64’4 W x 67’10 D : — 64’4 W x 67’10 D .
Bath: 4 Compare 3332 Heated SqFt 82’2 W x 85’7 D Bed: 5 — Bath: 3.5 Compare 3580 SQFT 97’6 W x 83’3 D Кровать: 5 — ванна: 3,5 4105 41019 Кровать: 5 — ванна: 3,5 Сравнение Plan 78503
План 82357
План 78521
x 81’6 «D План 92351
5077 Огромный SQFT
92 ‘W x 7911107 D
. — Ванна: 4
Сравнить
Plan 81987
5156 Heated SqFt
65’0 W x 67’0 D
Bed: 5 — Bath: 5.5
Compare
Plan 82481
5695 Heated SqFt
158’7 W x 133’4 D
Кровать: 5 — ванна: 5,5
Сравнение
План 81900
5816. Огромный SQFT
444.0 W x 70’6 D.6.6 D.6.6 D.6.6 D.7064
Кровать: 5 — Ванна: 4.5
Compare
Plan 66236
6274 Heated SqFt
112 W x 81’10 D
Bed: 5 — Bath: 5.5
Compare
FHP Low Price Guarantee
Если вы найдете точно такой же план на веб-сайте конкурента по более низкой цене, объявленной ИЛИ по специальной цене РАСПРОДАЖИ, мы снизим цену конкурента на 5% от общей суммы, а не только на 5% от разницы! Чтобы воспользоваться нашей гарантией, позвоните нам по телефону 800-482-0464 или напишите нам на веб-сайт и номер плана, когда будете готовы сделать заказ.
Наша гарантия распространяется до 4 недель после покупки, поэтому вы можете быть уверены, что можете купить прямо сейчас.
Номер страницы результатов
Найдите правильный план дома с 5 спальнями
У нас есть более 1000 планов домов с 5 спальнями, разработанных для участков любого размера и площади. Кроме того, все наши планы легко настраиваются, и вы можете изменить дизайн в соответствии с вашими конкретными требованиями.
Чтобы найти правильный план этажа с 5 спальнями для вашего нового дома, просмотрите наш веб-сайт и воспользуйтесь нашей службой поиска.
Типы планов домов с 5 спальнями
Family Home Plans сотрудничает с высококвалифицированными архитекторами и дизайнерами, которые разрабатывают и проектируют замечательные планы этажей в соответствии с вашими потребностями. Наши дизайнеры домов используют новейшие технологии для создания планов домов с 5 спальнями, которые не только уникальны, но и соответствуют национальным строительным нормам и правилам.
Вот список наших самых популярных стилей планировки дома:
- Adobe House Plans
- План дома бунгало
- Чертежи коттеджа
- План загородного дома
- План прибрежного дома
- Планы фермерского дома
- План средиземноморского дома
- Планы современного дома
- План дома ранчо
- План дома Тюдоров
Почему выбирают планы семейного жилья?
Работая с нами, вы получите ряд преимуществ, таких как:
- Специальные скидки: Составление плана дома с нуля с помощью архитектора может быть дорогостоящим, особенно если оно включает в себя несколько комнат и удобств. Возможно, вам придется покопаться в своих карманах, чтобы уточнить план, пока он не будет соответствовать вашим требованиям. Однако это не относится к планам семейного дома. Мы не только предлагаем доступные цены, но и предоставляем специальные скидки при одновременном заказе нескольких разных планов дома.

- Гарантия низкой цены: Наша гарантия низкой цены просто бесподобна. Если вы найдете аналогичный план на сайте конкурента по более низкой цене, то мы обещаем превзойти общую стоимость на 5%. Эта гарантия распространяется на 4 недели после покупки любого из наших планов домов с 5 спальнями.
- Настраиваемые планы: все наши проекты домов и планы этажей полностью настраиваются. Мы можем изменить простой план дома с 5 спальнями, чтобы включить в него все необходимые удобства в вашем новом доме. Мы также можем обновить план дома с 2, 3 или 4 спальнями до плана дома с 5 спальнями.
- Удобный поиск: Наша служба поиска очень проста в использовании. Вы можете сортировать и уточнять результаты поиска в соответствии со своими предпочтениями. Вы также можете просматривать и сохранять планы этажей, сделанные вашим любимым дизайнером.
Bottom Line
Строительство дома с 5 спальнями — это огромные инвестиции. Учитывая это, крайне важно приобрести правильный план дома, используя наш сервис поиска.
Для получения дополнительной информации о наших планах дома, пожалуйста, не стесняйтесь обращаться к нам. Мы будем рады помочь вам! Видишь план, который тебе нравится? Воспользуйтесь нашим веб-сайтом, чтобы сделать покупку на свой выбор сегодня.
44 Открыть | Nautitech
showcasegenesis основные моментыЭкстерьерИнтерьерМодульностьХАРАКТЕРИСТИКИ
СТИЛЬ NAUTITECH НА ВЕРСИИ СОБЛАЗНЯЕТ КРУИЗЕРЫ, ИЩУЩИЕ СОВЕРШЕНСТВО
Модель 44 Open — это естественная эволюция линейки Nautitech, новый передовой дизайн, который в очередной раз переопределяет стандарты круизных лодок для дальнего плавания.
Благодаря революционной внутренней планировке, обновленному оснащению для повышения производительности и стильному внешнему виду, Nautitech 44 Open является лучшим в своем классе.
Nautitech 44 Откройте для себя свою страсть к морским приключениям.
посмотреть презентацию
GENESIS
Катамаран, построенный моряками для моряков ДНК.
44 Open естественно поместится между 40 Open и 46 Open . Эта модель инициирует эволюцию наших линий катамаранов.
Новый стиль с улучшениями, ориентированными на потребности наших моряков, ценные отзывы которых были важной частью процесса проектирования многокорпусных судов.
Загрузить брошюру
Нашей основной целью было сделать все маневры легкими и безопасными для небольшого экипажа в море. На этом катамаране все доступно, для определенного удовольствия за штурвалом для владельцев.
Марк Ломбард, Architecte Navy
Кристоф ШЕДАЛЬ АНГЛЭЙ, дизайнер
Киновитрина
ГЛАВНОЕ
У круизов Bluewater есть новое чудо для вашего кругосветного путешествия под парусом и длительного отпуска на море.
Модель 44 Open оснащена двойными постами управления, предпочтительной конструкцией для моряков.
Отличительная черта катамаранов Nautitech, обеспечивающая одновременно функциональность и безопасность благодаря полной интеграции в общий дизайн лодки.
Открытая концепция, фундаментальный элемент ДНК Nautitech
Наслаждайтесь каждым моментом, проведенным на борту, в просторной гостиной, где салон и кокпит составляют одно целое. Планировка, разработанная на основе оригинальной концепции бара, которая ставит веселье и непринужденность в основу опыта Nautitech.
The SmartRoom®, новое практичное и техническое пространство
Инновационное многофункциональное пространство, предназначенное для владельцев катамаранов, которые отправляются в долгое приключение по океану и ищут помещение, сочетающее технические и практичные функции.
Гладкие линии корпуса и перевернутая носовая часть, совершенно новый Nautitech 44 Open
Оптимизированное гидродинамическое днище и узкие корпуса ниже ватерлинии в сочетании со ступенчатыми скулами корпуса расширяют корпус и обеспечивают простор над ватерлинией.
Двойной пост управления, гарантия безопасности и ощущений
Идеальное место, чтобы иметь беспрепятственный обзор парусов и моря независимо от скорости, а также следить за членами экипажа, чтобы плыть в полной безопасности. Централизованные маневры на корме для поддержания связи с экипажем и удобства навигации.
Благодаря более короткому контуру рулевого управления активация руля будет усилена, обеспечивая ни с чем не сравнимое удовольствие от управления.
Расположение дорожки нижнего основного листа
Легкое маневрирование, видимость арматуры с поста управления, это положение дает много преимуществ. Эксплуатационные характеристики наших катамаранов
оптимальны благодаря опущенному положению гика максимально близко к крыше, что увеличивает эффективность грота в его нижней части.
Комфорт не без отдыха с более доступной ленивой сумкой.Крыша автобуса, напоминающая о мире океанских гонок
Современный дизайн крыши и ее сложные линии идеально повторяют линии корпуса. Тонкое взаимодействие вогнутых и выпуклых форм создает непревзойденную гармонию.
Удобная и модульная кабина
Уникальное жилое пространство на борту 44 Open. Просторный кокпит, соединенный с камбузом, приглашает ваших гостей в дружескую атмосферу во время вашего путешествия по морю.
Расслабляющее пространство, которое призывает мечтать
Передний кокпит, предназначенный для отдыха благодаря большой зоне для принятия солнечных ванн. Это идеальное место, чтобы насладиться закатом или позагорать.
ИНТЕРЬЕР
Инновационный интерьер
планировка стильного и пригодного для жизни катамарана
Откройте для себя уникальное жилое пространство, которое пересматривает концепцию «Открытости» и предлагает 360-градусный обзор
снаружи и обтекает новый бар, отделяющий салон от кухни.
Делитесь моментами на каждом этапе пути
Многофункциональная приподнятая столешница — самый знаковый элемент новой концепции 44 Open. Рядом с мачтой и в центре салона люди собираются вместе, обсуждают маршрут и, возможно, с энтузиазмом «возвышают свою мечту».
В соответствии с той же концепцией угловой диван представляет собой кокон и модульное пространство для детского сна, а также для ночных дежурств.
Редизайн кухонной зоны
Лучшие материалы были выбраны, чтобы предложить полностью интегрированный камбуз с новой отделкой и оборудованием. На кухне имеется легкая в уходе столешница из акриловой смолы, объединяющая раковину и плиту для приготовления пищи, со всеми необходимыми удобствами. Увеличенная вместимость холодильника с двойным выдвижным ящиком.
Стол с диаграммой «лицом вперед», предназначенный для навигации.
Модель 44 Open оснащена усовершенствованным многофункциональным столом, обращенным вперед, который можно использовать в качестве навигационного стола, ночных вахтенных или для работы с лодки.
Люкс владельца, который не оставит вас равнодушным
Модернизированный дизайн, сочетающий конфиденциальность и максимальное пространство. С видом на океан благодаря большим окнам и постоянному свету.
Также насладитесь угловым диваном, который подарит вам минуты спокойствия.
Элегантная и светлая ванная комната
Вместительные и функциональные объемы, которые заставят вас ценить каждое мгновение в этой ванной комнате, достойной самых изысканных отелей. Чтобы сохранить вашу конфиденциальность, туалеты разделены и оборудованы специальной раковиной для мытья рук.
Приятное жилое пространство на борту с большим количеством места для хранения
Каюта в кормовой части правого борта, которой нечего завидовать каюте владельца с кроватью размера «queen-size» и красивым выходом наружу.
Передняя каюта, Идеальная гостевая каюта
Левый или правый борт в зависимости от выбранной конфигурации, каждый гость может насладиться светлым и комфортным салоном для отдыха в любое время суток
Уникально:
умная комната®, которая подчиняется вашим желаниям
Прачечная, мастерская, кладовая.
.. My SmartRoom® предлагает вам все в одном месте. Заменив носовую каюту по правому борту на это многофункциональное пространство, вы избавитесь от нехватки места и возьмете на борт все оборудование, необходимое для далеких приключений.
Выберите идеальную компоновку
Несколько конфигураций:
3 или 4 каюты, с My SmartRoom® или без него,
Доступные конфигурации предлагают широкий выбор
для удовлетворения ваших потребностей.
- Без my smartroom®
- С my smartroom®
Технические характеристики
Катамаран, предназначенный для плавания по голубой воде
Идеально подходит для требовательных владельцев, ищущих приключений с комфортом
Технические данные 44 разомкнут
- Общая длина 13,30 м / 43 фута 8
- Общая балка 7,36 м / 24 фута 2
- Осадка 1,44 м / 4’9
- Водоизмещение (mLC) 10,9 т / 24 035 фунтов
- Площадь парусов 105 м² / 1142 кв.


