ΠΡΠ΄Π΅Π»ΠΊΠ° Π½Π°ΡΡΠΆΠ½ΡΡ ΠΎΡΠΊΠΎΡΠΎΠ² ΠΎΠΊΠΎΠ½ β ΠΡΠ΄Π΅Π»ΠΊΠ° ΠΎΡΠΊΠΎΡΠΎΠ² ΠΎΠΊΠΎΠ½ ΡΠ½Π°ΡΡΠΆΠΈ — Π½Π΅ΡΠΊΠΎΠ»ΡΠΊΠΎ Π΄ΠΎΡΡΡΠΏΠ½ΡΡ ΡΠΏΠΎΡΠΎΠ±ΠΎΠ² ΠΎΡΠ΄Π΅Π»ΠΊΠΈ ΡΠ²ΠΎΠΈΠΌΠΈ ΡΡΠΊΠ°ΠΌΠΈ
8 ΡΠΎΠ²Π΅ΡΠΎΠ² ΠΏΠΎ ΠΎΡΠ΄Π΅Π»ΠΊΠ΅ ΠΎΡΠΊΠΎΡΠΎΠ² ΠΎΠΊΠΎΠ½ Π²Π½ΡΡΡΠΈ ΠΈ ΡΠ½Π°ΡΡΠΆΠΈ
Π‘ΠΎΠ΄Π΅ΡΠΆΠ°Π½ΠΈΠ΅ ΡΡΠ°ΡΡΠΈ
ΠΠΎΠ»Π³ΠΎΠΆΠ΄Π°Π½Π½Π°Ρ Π·Π°ΠΌΠ΅Π½Π° ΡΡΠ°ΡΡΡ ΠΎΠΊΠΎΠ½ Π½Π° Π½ΠΎΠ²ΡΠ΅ ΠΏΡΠΎΠΈΠ·ΠΎΡΠ»Π°? Π’Π΅ΠΏΠ΅ΡΡ Π½Π°ΡΡΠ°Π»ΠΎ Π²ΡΠ΅ΠΌΡ Π΄Π»Ρ ΠΏΠΎΡΠ»Π΅Π΄Π½Π΅Π³ΠΎ ΡΡΡΠΈΡ Π° β ΠΎΡΠΎΡΠΌΠ»Π΅Π½ΠΈΡ ΠΎΡΠΊΠΎΡΠΎΠ². ΠΠ½ΠΎΠ³ΠΈΠ΅ ΡΠΎΠ²Π΅ΡΡΠ°ΡΡ Π±ΠΎΠ»ΡΡΡΡ ΠΎΡΠΈΠ±ΠΊΡ, ΠΎΡΡΠ°Π²Π»ΡΡ Π½Π°ΡΡΠΆΠ½ΡΠ΅ ΠΎΡΠΊΠΎΡΡ Π½Π΅ΠΎΡΠ΄Π΅Π»Π°Π½Π½ΡΠΌΠΈ ΠΈ ΡΠ½ΠΈΠΆΠ°Ρ ΡΠ΅ΠΌ ΡΠ°ΠΌΡΠΌ Π΄ΠΎΠ»Π³ΠΎΠ²Π΅ΡΠ½ΠΎΡΡΡ ΠΊΠΎΠ½ΡΡΡΡΠΊΡΠΈΠΈ. ΠΠ½ΡΡΡΠΈ ΠΎΡΠΊΠΎΡΡ, ΠΊΠ°ΠΊ ΠΏΡΠ°Π²ΠΈΠ»ΠΎ, ΠΎΠ±Π»ΠΈΡΠΎΠ²ΡΠ²Π°ΡΡΡΡ, ΠΈΡΡ ΠΎΠ΄Ρ ΠΈΠ· ΡΡΡΠ΅ΡΠΈΡΠ΅ΡΠΊΠΈΡ ΡΠΎΠΎΠ±ΡΠ°ΠΆΠ΅Π½ΠΈΠΉ, Π½ΠΎ Π½Π΅ Π²ΡΠ΅Π³Π΄Π° ΡΡΠΎ Π΄Π΅Π»Π°Π΅ΡΡΡ ΠΏΡΠ°Π²ΠΈΠ»ΡΠ½ΠΎ. ΠΠ°ΡΡΠ°Π»ΠΎ Π²ΡΠ΅ΠΌΡ ΡΠ°ΡΡΡΠ°Π²ΠΈΡΡ Π²ΡΠ΅ ΡΠΎΡΠΊΠΈ Π½Π°Π΄ Β«iΒ» Π² Π²ΠΎΠΏΡΠΎΡΠ΅ ΠΎΡΠ΄Π΅Π»ΠΊΠΈ ΠΎΡΠΊΠΎΡΠΎΠ² ΠΎΠΊΠΎΠ½ Π²Π½ΡΡΡΠΈ ΠΈ ΡΠ½Π°ΡΡΠΆΠΈ. Π Π°Π·Π±ΠΈΡΠ°Π΅ΠΌΡΡ, ΠΊΠ°ΠΊΠΎΠΉ ΠΌΠ°ΡΠ΅ΡΠΈΠ°Π» Π±ΡΠ΄ΡΡ ΠΏΡΠ΅Π΄ΠΏΠΎΡΡΠΈΡΠ΅Π»ΡΠ½Ρ Π² ΡΠΎΠΌ ΠΈΠ»ΠΈ ΠΈΠ½ΠΎΠΌ ΡΠ»ΡΡΠ°Π΅.
β1. ΠΡΠ΄Π΅Π»ΠΊΠ° ΠΎΡΠΊΠΎΡΠΎΠ²: ΡΠΎΠ»ΡΠΊΠΎ Π² ΠΊΡΠ°ΡΠΎΡΠ΅ Π»ΠΈ Π΄Π΅Π»ΠΎ?
ΠΡΠ΄Π΅Π»ΠΊΠ° ΠΎΡΠΊΠΎΡΠΎΠ² β ΡΡΠΎ Π·Π°Π²Π΅ΡΡΠ°ΡΡΠΈΠΉ ΡΡΠ°ΠΏ ΡΡΡΠ°Π½ΠΎΠ²ΠΊΠΈ Π½ΠΎΠ²ΡΡ ΠΎΠΊΠΎΠ½. ΠΠΎ Π²ΡΠ΅ΠΌΡ ΠΌΠΎΠ½ΡΠ°ΠΆΠ° ΡΡΠ΅Π½Π° ΠΎΠΊΠΎΠ»ΠΎ ΠΎΠΊΠΎΠ½Π½ΠΎΠ³ΠΎ ΠΏΡΠΎΠ΅ΠΌΠ° ΠΌΠΎΠΆΠ΅Ρ ΠΏΠΎΠ²ΡΠ΅ΠΆΠ΄Π°ΡΡΡΡ, Π° ΠΌΠ΅ΠΆΠ΄Ρ ΠΎΠΊΠ½ΠΎΠΌ ΠΈ ΡΡΠ΅Π½ΠΎΠΉ Π·Π°Π»ΠΈΠ²Π°Π΅ΡΡΡ ΠΌΠΎΠ½ΡΠ°ΠΆΠ½Π°Ρ ΠΏΠ΅Π½Π° β Π²ΡΡ ΠΎΠ΄ΠΈΡ Π½Π΅ ΠΎΡΠ΅Π½Ρ ΡΡΡΠ΅ΡΠΈΡΠ½ΠΎ. ΠΠ΄Π½Π°ΠΊΠΎ, ΠΎΠ±Π»ΠΈΡΠΎΠ²ΠΊΠ° ΠΎΠΊΠΎΠ½Π½ΡΡ ΠΎΡΠΊΠΎΡΠΎΠ² Π²ΡΠΏΠΎΠ»Π½ΡΠ΅ΡΡΡ Π½Π΅ ΡΠΎΠ»ΡΠΊΠΎ ΠΈ Π½Π΅ ΡΡΠΎΠ»ΡΠΊΠΎ ΡΠ°Π΄ΠΈ ΠΊΡΠ°ΡΠΎΡΡ.
ΠΡΠ°ΠΊ, Π²Π½ΡΡΡΠ΅Π½Π½ΠΈΠ΅ ΠΎΡΠΊΠΎΡΡ Π½ΡΠΆΠ½Ρ, ΡΡΠΎΠ±Ρ:
- Π·Π°ΡΠΈΡΠ°ΡΡ ΠΎΠΊΠ½ΠΎ ΠΎΡ ΠΏΠΎΠ²ΡΡΠ΅Π½Π½ΠΎΠΉ Π²Π»Π°ΠΆΠ½ΠΎΡΡΠΈ;
- ΡΠ»ΡΠΆΠΈΡΡ Π·Π°ΡΠΈΡΠΎΠΉ ΠΎΡ Π²ΠΎΠ·Π΄Π΅ΠΉΡΡΠ²ΠΈΡ ΠΊΠΎΠ½Π΄Π΅Π½ΡΠ°ΡΠ°, ΠΊΠΎΡΠΎΡΡΠΉ ΠΎΠ±ΡΠ°Π·ΡΠ΅ΡΡΡ ΠΈΠ·-Π·Π° ΡΠ°Π·Π½ΠΈΡΡ ΡΠ΅ΠΌΠΏΠ΅ΡΠ°ΡΡΡ Π²Π½ΡΡΡΠΈ ΠΏΠΎΠΌΠ΅ΡΠ΅Π½ΠΈΡ ΠΈ Π·Π° ΠΎΠΊΠ½ΠΎΠΌ;
- Π²ΡΠΏΠΎΠ»Π½ΡΡΡ Π΄Π΅ΠΊΠΎΡΠ°ΡΠΈΠ²Π½ΡΡ ΡΠΎΠ»Ρ, ΠΎΡΠ³Π°Π½ΠΈΡΠ½ΠΎ Π²ΠΏΠΈΡΡΠ²Π°Ρ ΠΎΠΊΠΎΠ½Π½ΡΡ ΠΊΠΎΠ½ΡΡΡΡΠΊΡΠΈΡ Π² ΠΈΠ½ΡΠ΅ΡΡΠ΅Ρ ΠΊΠΎΠΌΠ½Π°ΡΡ.

ΠΠ° Π²Π½Π΅ΡΠ½ΠΈΠ΅ ΠΎΡΠΊΠΎΡΡ Π²ΠΎΠ·Π»Π°Π³Π°ΡΡΡΡ ΠΊΡΠ΄Π° Π±ΠΎΠ»Π΅Π΅ Π²Π°ΠΆΠ½ΡΠ΅ Π·Π°Π΄Π°ΡΠΈ:
- Π·Π°ΡΠΈΡΠ°ΡΡ ΠΌΠΎΠ½ΡΠ°ΠΆΠ½ΡΡ ΠΏΠ΅Π½Ρ ΠΎΡ ΡΠΎΠ»Π½Π΅ΡΠ½ΡΡ Π»ΡΡΠ΅ΠΉ, Π°ΡΠΌΠΎΡΡΠ΅ΡΠ½ΡΡ ΠΎΡΠ°Π΄ΠΊΠΎΠ², ΠΏΠ΅ΡΠ΅ΠΏΠ°Π΄Π° ΡΠ΅ΠΌΠΏΠ΅ΡΠ°ΡΡΡ ΠΈ ΠΏΡΠΎΡΠΈΡ ΡΠ°ΠΊΡΠΎΡΠΎΠ²;
- ΠΌΠΎΠ½ΡΠ°ΠΆΠ½Π°Ρ ΠΏΠ΅Π½Π° β ΠΎΡΠ»ΠΈΡΠ½ΡΠΉ ΡΠ΅ΠΏΠ»ΠΎ- ΠΈ Π·Π²ΡΠΊΠΎΠΈΠ·ΠΎΠ»ΡΡΠΈΠΎΠ½Π½ΡΠΉ ΠΌΠ°ΡΠ΅ΡΠΈΠ°Π», Π½ΠΎ ΠΏΠΎΠ΄ Π΄Π΅ΠΉΡΡΠ²ΠΈΠ΅ΠΌ ΡΠΎΠ»Π½Π΅ΡΠ½ΡΡ Π»ΡΡΠ΅ΠΉ ΠΎΠ½Π° Π±ΡΡΡΡΠΎ ΡΠ°Π·ΡΡΡΠ°Π΅ΡΡΡ, ΡΠ°ΠΊ ΡΡΠΎ Π·Π°Π½ΡΡΡΡΡ ΠΎΡΠ΄Π΅Π»ΠΊΠΎΠΉ ΠΎΡΠΊΠΎΡΠΎΠ² Π»ΡΡΡΠ΅ ΠΊΠ°ΠΊ ΠΌΠΎΠΆΠ½ΠΎ ΡΠ°Π½ΡΡΠ΅;
- ΠΎΡΠΊΡΡΡΠ°Ρ ΠΌΠΎΠ½ΡΠ°ΠΆΠ½Π°Ρ ΠΏΠ΅Π½Π° ΠΈΠΌΠ΅Π΅Ρ ΡΠ²ΠΎΠΉΡΡΠ²ΠΎ Π²ΠΏΠΈΡΡΠ²Π°ΡΡ Π²Π»Π°Π³Ρ, ΠΊΠΎΡΠΎΡΠ°Ρ ΡΠ°Π·ΡΡΡΠ°Π΅Ρ ΠΌΠ°ΡΠ΅ΡΠΈΠ°Π» ΠΏΡΠΈ Π·Π°ΠΌΠ΅ΡΠ·Π°Π½ΠΈΠΈ ΠΈ ΡΠ½ΠΈΠΆΠ°Π΅Ρ Π΅Π³ΠΎ ΡΠ΅ΠΏΠ»ΠΎΠΈΠ·ΠΎΠ»ΡΡΠΈΠΎΠ½Π½ΡΠ΅ ΠΊΠ°ΡΠ΅ΡΡΠ²Π°. ΠΡΠΈ ΠΏΠΎΠ²ΡΡΠ΅Π½ΠΈΠΈ ΡΡΠΎΠ²Π½Ρ Π²Π»Π°ΠΆΠ½ΠΎΡΡΠΈ ΠΏΠ΅Π½Ρ Π½Π° 5% Π΅Π΅ ΡΠ΅ΠΏΠ»ΠΎΠΈΠ·ΠΎΠ»ΡΡΠΈΠΎΠ½Π½ΡΠ΅ ΡΠ²ΠΎΠΉΡΡΠ²Π° ΡΠ½ΠΈΠΆΠ°Π΅ΡΡΡ Π½Π°ΠΏΠΎΠ»ΠΎΠ²ΠΈΠ½Ρ.

ΠΡΠ΅Π½Ρ ΠΌΠ½ΠΎΠ³ΠΈΠ΅ ΠΎΡΠΊΠ»Π°Π΄ΡΠ²Π°ΡΡ Π²ΠΎΠΏΡΠΎΡ ΠΎΡΠ΄Π΅Π»ΠΊΠΈ ΠΎΠΊΠΎΠ½Π½ΡΡ ΠΎΡΠΊΠΎΡΠΎΠ² ΡΠ½Π°ΡΡΠΆΠΈ Π² Π΄ΠΎΠ»Π³ΠΈΠΉ ΡΡΠΈΠΊ. ΠΠΎΠ», Π³Π»Π°Π·Π° Π½Π΅ ΠΌΠΎΠ·ΠΎΠ»ΡΡ, Π·Π½Π°ΡΠΈΡ, Π½Π΅Ρ ΡΠΌΡΡΠ»Π° ΡΠΏΠ΅ΡΠΈΡΡ ΠΈ Π΄Π΅ΠΉΡΡΠ²ΠΎΠ²Π°ΡΡ. ΠΠΎΠ³Π΄Π° ΠΆΠ΅Π»Π°Π½ΠΈΠ΅, Π½Π°ΠΊΠΎΠ½Π΅Ρ, ΠΏΡΠΈΡ ΠΎΠ΄ΠΈΡ, ΠΎΠΊΠ°Π·ΡΠ²Π°Π΅ΡΡΡ, ΡΡΠΎ ΡΡΠ΅ΠΏΠ»Π΅Π½ΠΈΠ΅ ΠΎΠΊΠ½Π° ΠΈ ΠΎΠΊΠΎΠ½Π½ΠΎΠ³ΠΎ ΠΏΡΠΎΠ΅ΠΌΠ° ΡΡ ΡΠ΄ΡΠΈΠ»ΠΎΡΡ, Π° ΠΎ Π·Π²ΡΠΊΠΎ- ΠΈ ΡΠ΅ΠΏΠ»ΠΎΠΈΠ·ΠΎΠ»ΡΡΠΈΠΈ ΠΈ Π³ΠΎΠ²ΠΎΡΠΈΡΡ Π½Π΅ΡΠ΅Π³ΠΎ. ΠΠ°Π΄Π°ΡΠ° ΡΡΠ»ΠΎΠΆΠ½ΡΠ΅ΡΡΡ.
ΠΠΎΠΌΠ½ΠΈΡΠ΅, ΡΡΠΎ ΡΠ²ΠΎΠ΅Π²ΡΠ΅ΠΌΠ΅Π½Π½ΠΎ ΠΈ ΠΊΠ°ΡΠ΅ΡΡΠ²Π΅Π½Π½ΠΎ ΠΎΡΠ΄Π΅Π»Π°Π½Π½ΡΠ΅ ΠΎΡΠΊΠΎΡΡ ΠΎΠΊΠΎΠ½ ΠΏΠΎΠ·Π²ΠΎΠ»ΡΡ ΠΈΠ·Π±Π΅ΠΆΠ°ΡΡ ΠΌΠ½ΠΎΠ³ΠΈΡ ΠΏΡΠΎΠ±Π»Π΅ΠΌ. Π’Π°ΠΊΠΈΠ΅ ΠΎΠΊΠ½Π° Π½Π΅ Π±ΠΎΡΡΡΡ ΠΏΠ΅ΡΠ΅ΠΏΠ°Π΄ΠΎΠ² ΡΠ΅ΠΌΠΏΠ΅ΡΠ°ΡΡΡ, Ρ ΠΎΡΠΎΡΠΎ Π·Π°ΡΠΈΡΠ°ΡΡ ΠΎΡ Π²Π½Π΅ΡΠ½Π΅Π³ΠΎ ΡΡΠΌΠ° ΠΈ Ρ ΠΎΠ»ΠΎΠ΄Π°/ΠΆΠ°ΡΡ.
β2. ΠΡΡΡΠΊΠ°ΡΡΡΠΈΠ²Π°Π½ΠΈΠ΅ ΠΈ ΠΏΠΎΠΊΡΠ°ΡΠΊΠ° ΠΎΡΠΊΠΎΡΠΎΠ²
Π‘Π°ΠΌΡΠΉ ΠΏΡΠΎΡΡΠΎΠΉ ΠΈ Π΄Π΅ΡΠ΅Π²ΡΠΉ ΡΠΏΠΎΡΠΎΠ± ΠΎΡΠΎΡΠΌΠΈΡΡ ΠΎΡΠΊΠΎΡΡ β ΠΎΡΡΡΠΊΠ°ΡΡΡΠΈΡΡ ΠΈΡ . ΠΠ°ΡΠΈΠ°Π½Ρ ΠΏΠΎΠ΄Ρ ΠΎΠ΄ΠΈΡ ΠΈ Π΄Π»Ρ Π²Π½ΡΡΡΠ΅Π½Π½ΠΈΡ , ΠΈ Π΄Π»Ρ Π½Π°ΡΡΠΆΠ½ΡΡ ΡΠ°Π±ΠΎΡ. ΠΡΠΏΠΎΠ»ΡΠ·ΡΡΡ Π³ΠΎΡΠΎΠ²ΡΠ΅ ΡΠΌΠ΅ΡΠΈ Π½Π° ΠΎΡΠ½ΠΎΠ²Π΅ ΡΠ΅ΠΌΠ΅Π½ΡΠ°, Π΄Π»Ρ Π²Π½ΡΡΡΠ΅Π½Π½ΠΈΡ ΡΠ°Π±ΠΎΡ ΠΏΠΎΠ΄ΠΎΠΉΠ΄ΡΡ ΠΊΠ°ΠΊ ΡΠ΅ΠΌΠ΅Π½ΡΠ½ΡΠ΅, ΡΠ°ΠΊ ΠΈ Π³ΠΈΠΏΡΠΎΠ²ΡΠ΅ ΡΠΎΡΡΠ°Π²Ρ. ΠΠ»Ρ ΠΎΡΠ΄Π΅Π»ΠΊΠΈ Π½Π°ΡΡΠΆΠ½ΡΡ ΠΎΡΠΊΠΎΡΠΎΠ² ΡΠ΅ΠΊΠΎΠΌΠ΅Π½Π΄ΡΡΡ Π±ΡΠ°ΡΡ ΡΠΏΠ΅ΡΠΈΠ°Π»ΡΠ½ΡΠΉ ΡΠΎΡΡΠ°Π² Π΄Π»Ρ ΡΠ°ΡΠ°Π΄Π½ΡΡ ΡΠ°Π±ΠΎΡ, Π° Π΅ΡΠ»ΠΈ ΠΎΠ½ Π±ΡΠ΄Π΅Ρ Β«ΡΠ΅ΠΏΠ»ΡΠΌΒ», ΡΠΎ Π±ΡΠ΄Π΅Ρ Π²ΠΎΠΎΠ±ΡΠ΅ Π·Π΄ΠΎΡΠΎΠ²ΠΎ.
Π ΠΎΡΠ½ΠΎΠ²Π½ΡΠΌ ΠΏΡΠ΅ΠΈΠΌΡΡΠ΅ΡΡΠ²Π°ΠΌ ΡΠΏΠΎΡΠΎΠ±Π° ΠΎΡΠ½ΠΎΡΡΡ:
- Π½Π΅Π²ΡΡΠΎΠΊΡΡ ΡΡΠΎΠΈΠΌΠΎΡΡΡ;
- Π΄ΠΎΡΡΡΠΏΠ½ΠΎΡΡΡ Π²ΡΠ΅Ρ Π½Π΅ΠΎΠ±Ρ ΠΎΠ΄ΠΈΠΌΡΡ ΠΈΠ½ΡΡΡΡΠΌΠ΅Π½ΡΠΎΠ²;
- Π²ΠΎΠ·ΠΌΠΎΠΆΠ½ΠΎΡΡΡ Π²ΡΠΏΠΎΠ»Π½ΠΈΡΡ Π²ΡΠ΅ ΡΠ°Π±ΠΎΡΡ ΡΠ°ΠΌΠΎΡΡΠΎΡΡΠ΅Π»ΡΠ½ΠΎ;
- ΠΏΠΎΠΊΡΡΡΠΈΠ΅ ΠΎΡΠ»ΠΈΡΠ°Π΅ΡΡΡ ΠΏΡΠΎΡΠ½ΠΎΡΡΡΡ ΠΈ ΡΡΠΎΠΉΠΊΠΎΡΡΡΡ ΠΊ ΠΎΠ³Π½Ρ.

Π‘ΡΠ΅Π΄ΠΈ ΠΌΠΈΠ½ΡΡΠΎΠ²:
- ΡΠ»ΠΎΠΉ ΡΡΡΠΊΠ°ΡΡΡΠΊΠΈ Π½Π΅ Π΄ΠΎΠ»ΠΆΠ΅Π½ ΠΏΡΠ΅Π²ΡΡΠ°ΡΡ 2 ΡΠΌ, ΡΠ°ΠΊ ΡΡΠΎ ΡΠΏΠΎΡΠΎΠ± ΠΏΠΎΠ΄Ρ ΠΎΠ΄ΠΈΡ Π΄Π»Ρ Π±ΠΎΠ»Π΅Π΅-ΠΌΠ΅Π½Π΅Π΅ ΡΠΎΠ²Π½ΡΡ ΠΎΡΠΊΠΎΡΠΎΠ²;
- Π²ΡΡΠΎΠΊΠΈΠ΅ Π²ΡΠ΅ΠΌΠ΅Π½Π½ΡΠ΅ Π·Π°ΡΡΠ°ΡΡ;
- Π½Π°ΡΡΠΆΠ½Π°Ρ ΠΎΡΠ΄Π΅Π»ΠΊΠ° Π±ΡΠ΄Π΅Ρ Π±ΡΡΡΡΠΎ ΠΏΠ°ΡΠΊΠ°ΡΡΡΡ, ΠΌΠΎΠΆΠ΅Ρ ΡΡΠ΅ΡΠΊΠ°ΡΡΡΡ, ΠΏΡΠΈΠ΄Π΅ΡΡΡ ΡΠ΅Π³ΡΠ»ΡΡΠ½ΠΎ ΠΎΠ±Π½ΠΎΠ²Π»ΡΡΡ ΠΏΠΎΠΊΡΡΡΠΈΠ΅.
ΠΡΠΈΠ½ΡΠΈΠΏ ΠΏΡΠΎΠ²Π΅Π΄Π΅Π½ΠΈΡ ΡΡΡΠΊΠ°ΡΡΡΠΊΠΈ ΠΎΡΠΊΠΎΡΠΎΠ² ΡΠ»Π΅Π΄ΡΡΡΠΈΠΉ:
- ΠΏΠΎΠ΄Π³ΠΎΡΠΎΠ²ΠΊΠ° ΠΏΠΎΠ²Π΅ΡΡ Π½ΠΎΡΡΠΈ. ΠΡΠ»ΠΈ Π΅ΡΡΡ ΡΡΠ°ΡΠ°Ρ ΡΡΡΠΊΠ°ΡΡΡΠΊΠ° ΠΈΠ»ΠΈ ΠΏΠΎΠ±Π΅Π»ΠΊΠ°, Π΅Π΅ Π½Π°Π΄ΠΎ ΡΠ½ΡΡΡ. ΠΠ° Π±Π΅ΡΠΎΠ½Π½ΡΡ ΠΏΠΎΠ²Π΅ΡΡ Π½ΠΎΡΡΡ ΠΏΠΎΡΠ»Π΅ ΡΡΠΎΠ³ΠΎ ΠΌΠΎΠΆΠ½ΠΎ Π½Π°Π½Π΅ΡΡΠΈ Π½Π°ΡΠ΅ΡΠΊΠΈ Π΄Π»Ρ ΡΠ»ΡΡΡΠ΅Π½ΠΈΡ Π°Π΄Π³Π΅Π·ΠΈΠΈ. Π£Π΄Π°Π»ΠΈΡΠ΅ ΠΈΠ·Π»ΠΈΡΠΊΠΈ ΠΏΠ΅Π½Ρ, ΡΠ½ΠΈΠΌΠΈΡΠ΅ ΠΆΠΈΡΠ½ΡΠ΅ ΠΏΡΡΠ½Π°, ΠΏΡΠ»Ρ, ΠΎΠ±ΡΠ°Π±ΠΎΡΠ°ΠΉΡΠ΅ ΠΏΠΎΠ²Π΅ΡΡ Π½ΠΎΡΡΡ Π°Π½ΡΠΈΡΠ΅ΠΏΡΠΈΠΊΠΎΠΌ;
- ΠΏΡΠΈ ΡΠ°Π±ΠΎΡΠ΅ Ρ Π²Π½Π΅ΡΠ½ΠΈΠΌ ΠΎΡΠΊΠΎΡΠΎΠΌ ΡΡΡΠ°Π½Π°Π²Π»ΠΈΠ²Π°ΡΡ ΠΎΡΠ»ΠΈΠ², ΡΠΈΠΊΡΠΈΡΡΡΡ Π΅Π³ΠΎ Π½Π° ΡΠ°ΠΌΠΎΡΠ΅Π·Ρ;
- ΡΡΠ΅ΠΊΠ»ΠΎΠΏΠ°ΠΊΠ΅Ρ ΠΈ ΡΠ°ΠΌΡ Π»ΡΡΡΠ΅ ΠΏΡΠΈΠΊΡΡΡΡ ΠΏΠΎΠ»ΠΈΡΡΠΈΠ»Π΅Π½ΠΎΠ²ΠΎΠΉ ΠΏΠ»Π΅Π½ΠΊΠΎΠΉ, ΡΡΠΎΠ±Ρ Π·Π°ΡΠΈΡΠΈΡΡ ΠΎΡ Π·Π°Π³ΡΡΠ·Π½Π΅Π½ΠΈΠΉ. ΠΠ°ΡΠΈΠΊΡΠΈΡΠΎΠ²Π°ΡΡ ΠΏΠ»Π΅Π½ΠΊΡ ΠΌΠΎΠΆΠ½ΠΎ ΠΏΡΠΈ ΠΏΠΎΠΌΠΎΡΠΈ ΠΌΠ°Π»ΡΡΠ½ΠΎΠ³ΠΎ ΡΠΊΠΎΡΡΠ°;

- Π³ΡΡΠ½ΡΠΎΠ²ΠΊΠ° ΠΏΠΎΠ²Π΅ΡΡ Π½ΠΎΡΡΠΈ, Π·Π° ΡΡΠ΅Ρ ΡΠ΅Π³ΠΎ ΡΠ»ΡΡΡΠ°Π΅ΡΡΡ Π°Π΄Π³Π΅Π·ΠΈΡ ΠΈ ΠΏΡΠ΅Π΄ΠΎΡΠ²ΡΠ°ΡΠ°Π΅ΡΡΡ ΠΎΡΡΠΏΠ°Π½ΠΈΠ΅;
- ΡΠ³Π»Ρ ΠΎΠΊΠΎΠ½Π½ΠΎΠ³ΠΎ ΠΏΡΠΎΠ΅ΠΌΠ° ΡΠΊΡΠ΅ΠΏΠ»ΡΡΡ ΠΏΠ»Π°ΡΡΠΈΠΊΠΎΠ²ΡΠΌ ΠΈΠ»ΠΈ ΠΌΠ΅ΡΠ°Π»Π»ΠΈΡΠ΅ΡΠΊΠΈΠΌ ΠΏΠ΅ΡΡΠΎΡΠΈΡΠΎΠ²Π°Π½Π½ΡΠΌ ΡΠ³ΠΎΠ»ΠΊΠΎΠΌ. ΠΠ°ΠΊΡΠ΅ΠΏΠ»ΡΡΡ Π΅Π³ΠΎ Π³ΠΈΠΏΡΠΎΠ²ΠΎΠΉ ΡΠΌΠ΅ΡΡΡ;

- ΠΌΠΎΠΆΠ½ΠΎ ΠΈΠ·Π³ΠΎΡΠΎΠ²ΠΈΡΡ ΡΠΏΠ΅ΡΠΈΠ°Π»ΡΠ½ΡΠΉ ΠΈΠ½ΡΡΡΡΠΌΠ΅Π½Ρ β ΠΌΠ°Π»ΠΊΡ, ΠΊΠΎΡΠΎΡΡΠΉ ΠΏΠΎΠ·Π²ΠΎΠ»ΠΈΡ ΠΏΡΠ°Π²ΠΈΠ»ΡΠ½ΠΎ Π²ΡΡΠΎΠ²Π½ΡΡΡ ΠΎΡΠΊΠΎΡΡ ΠΈ ΡΠΎΠ·Π΄Π°ΡΡ ΡΠ»ΠΎΠΉ ΡΡΡΠΊΠ°ΡΡΡΠΊΠΈ Π½ΡΠΆΠ½ΠΎΠ³ΠΎ ΡΡΠΎΠ²Π½Ρ (ΠΎΠΊΠΎΠ»ΠΎ ΠΎΠΊΠ½Π° ΡΠ»ΠΎΠΉ Π±ΡΠ΄Π΅Ρ Π±ΠΎΠ»ΡΡΠ΅, Π° Π±Π»ΠΈΠΆΠ΅ ΠΊ Π²Π½Π΅ΡΠ½Π΅ΠΌΡ ΠΊΡΠ°Ρ β ΠΌΠ΅Π½ΡΡΠ΅). ΠΠ»Ρ ΠΈΠ·Π³ΠΎΡΠΎΠ²Π»Π΅Π½ΠΈΡ ΠΌΠ°Π»ΠΊΠΈ ΠΏΠΎΠ΄ΠΎΠΉΠ΄Π΅Ρ Π΄Π΅ΡΠ΅Π²ΡΠ½Π½Π°Ρ Π΄ΠΎΡΠΊΠ°, Π² ΡΠΎΡΡΠ΅ ΠΊΠΎΡΠΎΡΠΎΠΉ Π΄Π΅Π»Π°ΡΡ Π²ΡΡΠ΅Π·, ΡΡΠΎΠ±Ρ ΠΏΡΠΈ ΠΏΠ΅ΡΠ΅ΠΌΠ΅ΡΠ΅Π½ΠΈΠΈ Π΅Π΅ Π½Π΅ Π²ΠΎΠ·Π½ΠΈΠΊΠ°Π»ΠΎ ΡΠ΄Π²ΠΈΠ³ΠΎΠ² ΠΈ ΡΡΡΠΊΠ°ΡΡΡΠΊΠ° Π»ΠΎΠΆΠΈΠ»Π°ΡΡ Π½ΡΠΆΠ½ΠΎΠΉ ΡΠΎΠ»ΡΠΈΠ½Ρ;

- ΡΠ»ΠΎΠΉ ΡΡΠ°ΡΡΠΎΠ²ΠΎΠΉ ΡΡΡΠΊΠ°ΡΡΡΠΊΠΈ Π½Π°Π½ΠΎΡΠΈΡΡΡ Π²Π½Π°Π±ΡΡΠ·Π³ ΡΠΏΠ°ΡΠ΅Π»Π΅ΠΌ, Π²ΡΡΠ°Π²Π½ΠΈΠ²Π°Π΅ΡΡΡ ΠΌΠ°Π»ΠΊΠΎΠΉ ΠΈΠ»ΠΈ ΠΏΡΠ°Π²ΠΈΠ»ΠΎΠΌ. ΠΠ° Π²Π΅ΡΡ Π½ΡΡ Π³ΠΎΡΠΈΠ·ΠΎΠ½ΡΠ°Π»ΡΠ½ΡΡ ΡΠ°ΡΡΡ ΠΎΡΠΊΠΎΡΠ° ΡΠΌΠ΅ΡΡ Π½Π°Π½ΠΎΡΡΡ ΠΌΠ°ΡΡΠ΅ΡΠΊΠΎΠΌ ΠΈΠ»ΠΈ ΡΠΏΠ°ΡΠ΅Π»Π΅ΠΌ, Π²ΡΡΠ°Π²Π½ΠΈΠ²Π°Π½ΠΈΠ΅ ΠΏΡΠΎΠΈΡΡ ΠΎΠ΄ΠΈΡ ΡΠΈΡΠΎΠΊΠΈΠΌ ΡΠΏΠ°ΡΠ΅Π»Π΅ΠΌ ΠΈΠ»ΠΈ ΠΌΠ°Π»ΠΊΠΎΠΉ. ΠΡΡΠΎΠ²Π½ΡΡΡ Π²Π΅ΡΡ Π½ΠΈΠΉ ΠΎΡΠΊΠΎΡ ΡΠ»ΠΎΠΆΠ½ΠΎ, ΠΏΠΎΡΡΠΎΠΌΡ Π»ΡΡΡΠ΅ Π½Π°Π½Π΅ΡΡΠΈ Π½Π΅ΡΠΊΠΎΠ»ΡΠΊΠΎ ΡΠΎΠ½ΠΊΠΈΡ ΡΠ»ΠΎΠ΅Π²;
- Π΄Π»Ρ ΡΠΎΡΠΌΠΈΡΠΎΠ²Π°Π½ΠΈΡ ΠΊΡΠ°ΡΠΈΠ²ΠΎΠ³ΠΎ ΡΠ³Π»Π° ΠΌΠ΅ΠΆΠ΄Ρ Π²Π΅ΡΡΠΈΠΊΠ°Π»ΡΠ½ΡΠΌΠΈ ΠΈ Π³ΠΎΡΠΈΠ·ΠΎΠ½ΡΠ°Π»ΡΠ½ΡΠΌ ΠΎΡΠΊΠΎΡΠΎΠΌ ΠΈΡΠΏΠΎΠ»ΡΠ·ΡΡΡ ΡΠ³Π»ΠΎΠ²ΠΎΠΉ ΡΠΏΠ°ΡΠ΅Π»Ρ;
- ΠΏΡΠΈ Π²ΡΠΏΠΎΠ»Π½Π΅Π½ΠΈΠΈ Π½Π°ΡΡΠΆΠ½ΡΡ
ΡΠ°Π±ΠΎΡ ΠΌΠΎΠΆΠ½ΠΎ ΠΈΡΠΏΠΎΠ»ΡΠ·ΠΎΠ²Π°ΡΡ Π°ΡΠΌΠΈΡΡΡΡΡΡ ΡΠ΅ΡΠΊΡ. ΠΠ½Π° Π²Π΄Π°Π²Π»ΠΈΠ²Π°Π΅ΡΡΡ Π² ΡΠ»ΠΎΠΉ ΡΡΡΠΊΠ°ΡΡΡΠΊΠΈ ΠΈ Π±ΡΠ΄Π΅Ρ Π² ΠΏΠΎΡΠ»Π΅Π΄ΡΡΡΠ΅ΠΌ ΡΠΊΡΠ΅ΠΏΠ»ΡΡΡ ΠΎΡΠΊΠΎΡ;

- ΠΏΠΎΡΠ»Π΅ ΡΡΠ°ΡΡΠΎΠ²ΠΎΠΉ ΡΡΡΠΊΠ°ΡΡΡΠΊΠΈ ΠΌΠΎΠΆΠ½ΠΎ ΠΈΡΠΏΠΎΠ»ΡΠ·ΠΎΠ²Π°ΡΡ ΡΠΏΠ°ΠΊΠ»Π΅Π²ΠΊΡ Π΄Π»Ρ Π²ΡΡΠ°Π²Π½ΠΈΠ²Π°Π½ΠΈΡ ΠΏΠΎΠ²Π΅ΡΡ Π½ΠΎΡΡΠΈ, Π½ΠΎ ΠΌΠ½ΠΎΠ³ΠΈΠ΅ ΠΎΠ±Ρ ΠΎΠ΄ΡΡΡΡ Π±Π΅Π· Π½Π΅Π΅. ΠΡΠ»ΠΈ ΠΎΠ½Π° ΠΈΡΠΏΠΎΠ»ΡΠ·ΠΎΠ²Π°Π½Π°, ΡΠΎ ΡΠ²Π΅ΡΡ Ρ ΠΏΠΎΠ²Π΅ΡΡ Π½ΠΎΡΡΡ Π»ΡΡΡΠ΅ ΠΏΠ΅ΡΠ΅Π³ΡΡΠ½ΡΠΎΠ²Π°ΡΡ;
- ΡΠ΅ΠΏΠ΅ΡΡ ΠΌΠΎΠΆΠ½ΠΎ Π½Π°Π½Π΅ΡΡΠΈ ΡΠΈΠ½ΠΈΡΠ½ΡΠΉ ΡΠ»ΠΎΠΉ ΡΡΡΠΊΠ°ΡΡΡΠΊΠΈ, ΠΏΡΠΈ Π½Π΅ΠΎΠ±Ρ ΠΎΠ΄ΠΈΠΌΠΎΡΡΠΈ ΠΏΡΠΈΠ΄Π°ΡΡ Π΅ΠΌΡ ΠΎΠΏΡΠ΅Π΄Π΅Π»Π΅Π½Π½ΡΠ΅ ΡΠ΅Π»ΡΠ΅Ρ, ΠΎΠΊΡΠ°ΡΠΈΡΡ. ΠΠ΅ΠΊΠΎΡΠΎΡΡΠ΅ ΠΏΡΠΎΠ²ΠΎΠ΄ΡΡ ΠΎΠΊΡΠ°ΡΠΈΠ²Π°Π½ΠΈΠ΅ ΠΏΠΎ ΡΠΏΠ°ΠΊΠ»Π΅Π²ΠΊΠ΅, ΠΏΠΎΠ»ΡΡΠ°Ρ ΠΊΡΠ°ΡΠΈΠ²ΡΠΉ ΡΠΎΠ²Π½ΡΠΉ ΠΈ Π³Π»Π°Π΄ΠΊΠΈΠΉ ΠΎΡΠΊΠΎΡ.
β3. ΠΡΠ΄Π΅Π»ΠΊΠ° ΠΎΡΠΊΠΎΡΠΎΠ² Π³ΠΈΠΏΡΠΎΠΊΠ°ΡΡΠΎΠ½ΠΎΠΌ
ΠΠ΅ Π½Π°ΠΌΠ½ΠΎΠ³ΠΎ Π΄ΠΎΡΠΎΠΆΠ΅ ΠΎΠ±ΠΎΠΉΠ΄Π΅ΡΡΡ ΠΎΡΠ΄Π΅Π»ΠΊΠ° ΠΎΡΠΊΠΎΡΠΎΠ² Π³ΠΈΠΏΡΠΎΠΊΠ°ΡΡΠΎΠ½ΠΎΠΌ. ΠΠ³ΠΎ ΠΈΡΠΏΠΎΠ»ΡΠ·ΡΡΡ, Π² ΠΎΡΠ½ΠΎΠ²Π½ΠΎΠΌ, Π΄Π»Ρ Π²Π½ΡΡΡΠ΅Π½Π½ΠΈΡ ΡΠ°Π±ΠΎΡ, Π½ΠΎ Π½Π΅ΠΊΠΎΡΠΎΡΡΠ΅ ΠΌΠ°ΡΡΠ΅ΡΠ° ΠΏΡΠΈΠΌΠ΅Π½ΡΡΡ Π΅Π³ΠΎ ΠΈ Π² Π½Π°ΡΡΠΆΠ½ΡΡ ΡΠ°Π±ΠΎΡΠ°Ρ , ΡΠΊΡΡΠ²Π°Ρ Π² ΠΈΡΠΎΠ³Π΅ ΠΏΠΎΠ΄ ΡΠ»ΠΎΠ΅ΠΌ Π·Π°ΡΠΈΡΠ½ΠΎΠ³ΠΎ ΠΏΠΎΠΊΡΡΡΠΈΡ, Π½Π°ΠΏΡΠΈΠΌΠ΅Ρ, ΠΏΠΎΠ΄ ΡΡΡΠΊΠ°ΡΡΡΠΊΠΎΠΉ. Π Π»ΡΠ±ΠΎΠΌ ΡΠ»ΡΡΠ°Π΅, Π»ΡΡΡΠ΅ Π²Π·ΡΡΡ Π²Π»Π°Π³ΠΎΡΡΠΎΠΉΠΊΠΈΠΉ Π³ΠΈΠΏΡΠΎΠΊΠ°ΡΡΠΎΠ½, ΠΊΠΎΡΠΎΡΡΠΉ Π½Π΅ ΡΠ°Π·ΡΡΡΠΈΡΡΡ ΠΏΠΎΠ΄ Π²ΠΎΠ·Π΄Π΅ΠΉΡΡΠ²ΠΈΠ΅ΠΌ ΠΊΠΎΠ½Π΄Π΅Π½ΡΠ°ΡΠ°. ΠΠ½ΠΎΠ³Π΄Π° Π΄Π»Ρ Π²Π½ΡΡΡΠ΅Π½Π½ΠΈΡ ΡΠ°Π±ΠΎΡ ΠΈΡΠΏΠΎΠ»ΡΠ·ΡΡΡ ΠΈ ΠΎΠ±ΡΡΠ½ΡΠΉ Π³ΠΈΠΏΡΠΎΠΊΠ°ΡΡΠΎΠ½, Π½ΠΎ Π΅Π³ΠΎ Π½Π°Π΄ΠΎ ΠΎΠ±ΡΠ°Π±ΠΎΡΠ°ΡΡ Π½Π΅ΡΠΊΠΎΠ»ΡΠΊΠΈΠΌΠΈ ΡΠ»ΠΎΡΠΌΠΈ Π³ΡΡΠ½ΡΠΎΠ²ΠΊΠΈ ΠΈΠ»ΠΈ Π²Π»Π°Π³ΠΎΠ·Π°ΡΠΈΡΠ½ΡΠΌΠΈ ΡΠΎΡΡΠ°Π²Π°ΠΌΠΈ.

ΠΡΠ΅ΠΈΠΌΡΡΠ΅ΡΡΠ²Π° ΡΠΏΠΎΡΠΎΠ±Π°:
- Π±ΡΠ΄ΠΆΠ΅ΡΠ½ΠΎΡΡΡ;
- Π²ΠΎΠ·ΠΌΠΎΠΆΠ½ΠΎΡΡΡ Π±ΡΡΡΡΠΎ Π²ΡΡΠΎΠ²Π½ΡΡΡ Π΄Π°ΠΆΠ΅ ΡΠ°ΠΌΡΡ ΡΠ»ΠΎΠΆΠ½ΡΡ ΠΏΠΎΠ²Π΅ΡΡ Π½ΠΎΡΡΡ;
- Π½Π΅Π±ΠΎΠ»ΡΡΠΎΠΉ Π²Π΅Ρ;
- ΠΎΡΠ½ΠΎΡΠΈΡΠ΅Π»ΡΠ½ΠΎ Π½Π΅ΡΠ»ΠΎΠΆΠ½ΡΠΉ ΠΌΠΎΠ½ΡΠ°ΠΆ.
ΠΠΈΠ½ΡΡΡ:
- Π³ΠΈΠΏΡΠΎΠΊΠ°ΡΡΠΎΠ½ Π±ΠΎΠΈΡΡΡ Π²Π»Π°Π³ΠΈ, ΡΠ°ΠΊ ΡΡΠΎ Π΄Π°ΠΆΠ΅ Π΄Π»Ρ ΠΎΡΠ΄Π΅Π»ΠΊΠΈ ΠΎΡΠΊΠΎΡΠΎΠ² Π²Π½ΡΡΡΠΈ ΠΏΠΎΠΌΠ΅ΡΠ΅Π½ΠΈΡ Π»ΡΡΡΠ΅ Π²ΡΠ΅ ΠΆΠ΅ Π±ΡΠ°ΡΡ Π²Π»Π°Π³ΠΎΡΡΠΎΠΉΠΊΠΈΠΉ Π²Π°ΡΠΈΠ°Π½Ρ. ΠΠ»Ρ Π½Π°ΡΡΠΆΠ½ΡΡ ΡΠ°Π±ΠΎΡ Π²ΠΎΠΎΠ±ΡΠ΅ Π»ΡΡΡΠ΅ ΡΠ°ΡΡΠΌΠΎΡΡΠ΅ΡΡ Π΄ΡΡΠ³ΠΈΠ΅ Π²Π°ΡΠΈΠ°Π½ΡΡ;
- Π½Π΅Π²ΡΡΠΎΠΊΠ°Ρ ΠΏΡΠΎΡΠ½ΠΎΡΡΡ, ΡΠ°ΠΊ ΡΡΠΎ Π±ΠΎΠ»Π΅Π΅-ΠΌΠ΅Π½Π΅Π΅ ΡΠΈΠ»ΡΠ½ΡΠΉ ΡΠ΄Π°Ρ ΠΌΠΎΠΆΠ½ΠΎ Π½Π°ΡΡΡΠΈΡΡ ΡΠ΅Π»ΠΎΡΡΠ½ΠΎΡΡΡ ΠΌΠ°ΡΠ΅ΡΠΈΠ°Π»Π°;
- ΡΠΎ Π²ΡΠ΅ΠΌΠ΅Π½Π΅ΠΌ Π½Π° ΠΏΠΎΠ²Π΅ΡΡ Π½ΠΎΡΡΠΈ ΠΏΠΎΡΠ²ΡΡΡΡ ΠΏΡΡΠ½Π°, ΠΏΡΠΈΠ΄Π΅ΡΡΡ Π²ΡΠΏΠΎΠ»Π½ΡΡΡ Π½Π΅Π±ΠΎΠ»ΡΡΠΎΠΉ ΡΠ΅ΠΌΠΎΠ½Ρ.
Π‘ΡΡΠ΅ΡΡΠ²ΡΠ΅Ρ Π½Π΅ΡΠΊΠΎΠ»ΡΠΊΠΎ Π²Π°ΡΠΈΠ°Π½ΡΠΎΠ² ΠΌΠΎΠ½ΡΠ°ΠΆΠ° Π³ΠΈΠΏΡΠΎΠΊΠ°ΡΡΠΎΠ½Π°:
- Π½Π° Π΄Π΅ΡΠ΅Π²ΡΠ½Π½ΡΡ ΠΈΠ»ΠΈ ΠΌΠ΅ΡΠ°Π»Π»ΠΈΡΠ΅ΡΠΊΡΡ ΠΎΠ±ΡΠ΅ΡΠ΅ΡΠΊΡ, Π΅ΡΠ»ΠΈ ΡΡΠ΅Π½Π° Ρ ΠΎΠΊΠ½ΠΎΠΌ ΡΠ°ΠΊΠΆΠ΅ Π±ΡΠ΄Π΅Ρ ΠΎΡΠ΄Π΅Π»ΡΠ²Π°ΡΡΡΡ Π³ΠΈΠΏΡΠΎΠΊΠ°ΡΡΠΎΠ½ΠΎΠΌ;

- ΡΠΈΠΊΡΠ°ΡΠΈΡ Π½Π° L-ΠΎΠ±ΡΠ°Π·Π½ΡΠΉ ΡΠ³ΠΎΠ»ΠΎΠΊ (ΡΠΈΠΊΡΠΈΡΡΠ΅ΡΡΡ Π½Π° Π²Π½Π΅ΡΠ½ΡΡ Π»ΠΈΠ½ΠΈΡ ΡΠ°ΠΌΡ) Ρ ΠΊΡΠ΅ΠΏΠ»Π΅Π½ΠΈΠ΅ΠΌ Π»ΠΈΡΡΠ° ΠΏΠΎΠ΄ Π½Π΅Π±ΠΎΠ»ΡΡΠΈΠΌ ΡΠ³Π»ΠΎΠΌ. ΠΡΠΎΡΡΡΠ°Π½ΡΡΠ²ΠΎ ΠΌΠ΅ΠΆΠ΄Ρ Π³ΠΈΠΏΡΠΎΠΊΠ°ΡΡΠΎΠ½ΠΎΠΌ ΠΈ ΠΎΡΠΊΠΎΡΠΎΠΌ Π·Π°ΠΏΠΎΠ»Π½ΡΠ΅ΡΡΡ ΡΡΠ΅ΠΏΠ»ΠΈΡΠ΅Π»Π΅ΠΌ;
- ΡΠΈΠΊΡΠ°ΡΠΈΡ ΠΠΠ ΠΏΡΡΠΌΠΎ Π½Π° ΠΎΡΠΊΠΎΡ ΠΏΡΠΈ ΠΏΠΎΠΌΠΎΡΠΈ ΠΌΠΎΠ½ΡΠ°ΠΆΠ½ΠΎΠΉ ΠΏΠ΅Π½Ρ, ΡΠΏΠ°ΠΊΠ»Π΅Π²ΠΊΠΈ ΠΈΠ»ΠΈ ΠΊΠ»Π΅Ρ. ΠΠ°ΡΠΈΠ°Π½Ρ Π²ΠΎΠ·ΠΌΠΎΠΆΠ΅Π½ ΠΏΡΠΈ Π΄ΠΎΡΡΠ°ΡΠΎΡΠ½ΠΎΠΉ ΡΠΎΠ²Π½ΠΎΡΡΠΈ ΠΎΡΠΊΠΎΡΠ°.

ΠΠ΅ΡΠ΅Π΄ Π½Π°ΡΠ°Π»ΠΎΠΌ ΡΠ°Π±ΠΎΡ ΡΠ½ΠΈΠΌΠ°ΡΡ ΡΡΠ°ΡΡΡ ΠΎΡΠ΄Π΅Π»ΠΊΡ, ΠΎΡΠΈΡΠ°ΡΡ ΠΎΡΠΊΠΎΡΡ, ΠΎΠ±ΡΠ°Π±Π°ΡΡΠ²Π°ΡΡ Π³ΡΡΠ½ΡΠΎΠ²ΠΊΠΎΠΉ, Π·Π½Π°ΡΠΈΡΠ΅Π»ΡΠ½ΡΠ΅ ΠΏΠΎΠ²ΡΠ΅ΠΆΠ΄Π΅Π½ΠΈΡ ΠΌΠΎΠΆΠ½ΠΎ Π·Π°ΠΏΠΎΠ»Π½ΠΈΡΡ ΡΡΡΠΊΠ°ΡΡΡΠ½ΡΠΌ ΡΠΎΡΡΠ°Π²ΠΎΠΌ. ΠΠ΅Π»Π°ΡΠ΅Π»ΡΠ½ΠΎ ΡΠ°ΠΊΠΆΠ΅ Π½Π°Π½Π΅ΡΡΠΈ Π½Π° Π±Π°Π·ΠΎΠ²ΡΡ ΠΏΠΎΠ²Π΅ΡΡ Π½ΠΎΡΡΡ Π²Π»Π°Π³ΠΎΡΡΠΎΠΉΠΊΠΈΠΉ ΠΈΠ»ΠΈ Π°Π½ΡΠΈΡΠ΅ΠΏΡΠΈΡΠ΅ΡΠΊΠΈΠΉ ΡΠΎΡΡΠ°Π². ΠΠΎΡΠ»Π΅ ΡΡΠΎΠ³ΠΎ Π²ΡΠΏΠΎΠ»Π½ΡΡΡΡΡ Π½Π΅ΠΎΠ±Ρ ΠΎΠ΄ΠΈΠΌΡΠ΅ Π·Π°ΠΌΠ΅ΡΡ, Π² ΡΠΎΠΎΡΠ²Π΅ΡΡΡΠ²ΠΈΠΈ Ρ Π½ΠΈΠΌΠΈ Π½Π°ΡΠ΅Π·Π°ΡΡΡΡ Π»ΠΈΡΡΡ Π³ΠΈΠΏΡΠΎΠΊΠ°ΡΡΠΎΠ½Π°.

Π§Π°ΡΠ΅ Π²ΡΠ΅Π³ΠΎ ΡΠ΅Π³ΠΎΠ΄Π½Ρ Π²ΡΠ±ΠΈΡΠ°ΡΡ ΠΌΠ΅ΡΠΎΠ΄ Ρ L-ΠΎΠ±ΡΠ°Π·Π½ΡΠΌ ΠΏΡΠΎΡΠΈΠ»Π΅ΠΌ. ΠΠ½ ΠΏΠΎΠ·Π²ΠΎΠ»ΡΠ΅Ρ Π΄ΠΎΠΏΠΎΠ»Π½ΠΈΡΠ΅Π»ΡΠ½ΠΎ ΡΡΠ΅ΠΏΠ»ΠΈΡΡ ΠΎΠΊΠ½ΠΎ ΠΈ Π»Π΅Π³ΠΊΠΎ ΡΠΏΡΠ°Π²ΠΈΡΡΡΡ Ρ Π΄ΠΎΡΡΠ°ΡΠΎΡΠ½ΠΎ Π·Π½Π°ΡΠΈΡΠ΅Π»ΡΠ½ΡΠΌΠΈ Π½Π΅ΡΠΎΠ²Π½ΠΎΡΡΡΠΌΠΈ:
- ΠΏΡΠΎΡΠΈΠ»Ρ ΠΏΡΠΈΠΊΡΡΡΠΈΠ²Π°ΡΡ ΠΏΠΎ ΠΊΡΠ°Ρ ΠΊ ΡΠ°ΠΌΠ΅, Π² Π½Π΅Π³ΠΎ Π±ΡΠ΄Π΅Ρ Π²ΡΡΠ°Π²Π»ΡΡΡΡΡ ΠΠΠ;

- ΠΏΡΠΎΡΠΈΠ»Ρ Π·Π°ΠΏΠΎΠ»Π½ΡΡΡ Π°ΠΊΡΠΈΠ»ΠΎΠ²ΡΠΌ Π³Π΅ΡΠΌΠ΅ΡΠΈΠΊΠΎΠΌ, ΠΏΠΎΡΠΎΠΌ Π²ΡΡΠ°Π²Π»ΡΡΡ ΠΏΠΎΠ΄Π³ΠΎΡΠΎΠ²Π»Π΅Π½Π½ΡΠΉ ΠΎΡΡΠ΅Π·ΠΎΠΊ ΠΠΠ;
- Π·Π°Π·ΠΎΡ ΠΌΠ΅ΠΆΠ΄Ρ ΠΎΡΠΊΠΎΡΠΎΠΌ ΠΈ ΠΠΠ Π·Π°ΠΏΠΎΠ»Π½ΡΡΡ ΠΌΠΈΠ½Π΅ΡΠ°Π»ΡΠ½ΠΎΠΉ Π²Π°ΡΠΎΠΉ;
- Π²Π½Π΅ΡΠ½ΠΈΠΉ ΠΊΡΠ°ΠΉ ΠΠΠ ΠΊΡΠ΅ΠΏΡΡ ΠΊ ΠΎΡΠΊΠΎΡΡ ΠΏΡΠΈ ΠΏΠΎΠΌΠΎΡΠΈ ΠΊΠ»Π΅Ρ;
- ΠΏΡΠΈΠ΄Π°Π²Π»ΠΈΠ²Π°ΡΡ Π³ΠΈΠΏΡΠΎΠΊΠ°ΡΡΠΎΠ½, ΠΏΠΎΠ»ΡΠ·ΡΡΡΡ ΡΡΠΎΠ²Π½Π΅ΠΌ.

ΠΠ»Ρ ΡΠΊΡΠ΅ΠΏΠ»Π΅Π½ΠΈΡ ΡΠ³Π»ΠΎΠ² ΠΌΠΎΠΆΠ½ΠΎ ΠΈΡΠΏΠΎΠ»ΡΠ·ΠΎΠ²Π°ΡΡ ΡΠΏΠ΅ΡΠΈΠ°Π»ΡΠ½ΡΠ΅ ΡΠ³ΠΎΠ»ΠΊΠΈ.
ΠΡΠ»ΠΈ ΠΎΡΠΊΠΎΡΡ ΡΠΎΠ²Π½ΡΠ΅, ΠΌΠΎΠΆΠ½ΠΎ ΠΏΠΎΠ΄Π³ΠΎΡΠΎΠ²Π»Π΅Π½Π½ΡΠ΅ ΠΎΡΡΠ΅Π·ΠΊΠΈ ΠΠΠ ΠΊΠ»Π΅ΠΈΡΡ ΠΏΡΡΠΌΠΎ Π½Π° Π½ΠΈΡ . ΠΡΠΎ Π±ΡΡΡΡΠΎ ΠΈ ΠΎΡΠ½ΠΎΡΠΈΡΠ΅Π»ΡΠ½ΠΎ Π½Π΅ΡΠ»ΠΎΠΆΠ½ΠΎ. ΠΡΠΈ ΠΌΠΎΠ½ΡΠ°ΠΆΠ΅ Π½Π° ΠΊΠ°ΡΠΊΠ°Ρ ΠΌΠΎΠΆΠ½ΠΎ ΠΈΡΠΏΠΎΠ»ΡΠ·ΠΎΠ²Π°ΡΡ ΡΡΠ΅ΠΏΠ»ΠΈΡΠ΅Π»Ρ.
ΠΠΎΠ³Π΄Π° Π²ΡΠ΅ Π³ΠΎΡΠΎΠ²ΠΎ, Π½Π°Π½ΠΎΡΡΡ ΡΠΏΠ°ΠΊΠ»Π΅Π²ΠΊΡ Π² Π½Π΅ΡΠΊΠΎΠ»ΡΠΊΠΎ ΡΠ»ΠΎΠ΅Π², ΠΏΠΎΡΠ»Π΅Π΄Π½ΠΈΠΉ ΡΠ»ΠΎΠΉ Π·Π°ΡΠΈΡΠ°ΡΡ, Π΄ΠΎΠ±ΠΈΠ²Π°ΡΡΡ ΠΌΠ°ΠΊΡΠΈΠΌΠ°Π»ΡΠ½ΠΎ ΡΠΎΠ²Π½ΠΎΠΉ ΠΈ Π³Π»Π°Π΄ΠΊΠΎΠΉ ΠΏΠΎΠ²Π΅ΡΡ Π½ΠΎΡΡΠΈ. Π’Π΅ΠΏΠ΅ΡΡ ΠΎΡΡΠ°Π΅ΡΡΡ ΡΠΎΠ»ΡΠΊΠΎ ΠΏΠΎΠΊΡΠ°ΡΠΈΡΡ ΠΎΡΠΊΠΎΡΡ Π°ΠΊΡΠΈΠ»ΠΎΠ²ΠΎΠΉ ΠΊΡΠ°ΡΠΊΠΎΠΉ Π»ΡΠ±ΠΎΠ³ΠΎ ΠΎΡΡΠ΅Π½ΠΊΠ°. ΠΡΠ»ΠΈ Π²Ρ ΡΠ΅ΡΠΈΠ»ΠΈΡΡ ΠΎΡΠΎΡΠΌΠΈΡΡ ΡΠ°ΠΊΠΈΠΌ ΠΎΠ±ΡΠ°Π·ΠΎΠΌ Π²Π½Π΅ΡΠ½ΠΈΠ΅ ΠΎΡΠΊΠΎΡΡ, ΡΠΎ ΠΏΡΠΈΠ΄Π΅ΡΡΡ Π½Π°Π½Π΅ΡΡΠΈ Π΅ΡΠ΅ ΠΈ ΡΡΡΠΊΠ°ΡΡΡΠΊΡ Ρ Π°ΡΠΌΠΈΡΡΡΡΠ΅ΠΉ ΡΠ΅ΡΠΊΠΎΠΉ, Π° ΠΏΠΎΡΠΎΠΌ β ΡΠΈΠ½ΠΈΡΠ½ΡΠΉ ΡΠ»ΠΎΠΉ ΡΡΡΠΊΠ°ΡΡΡΠΊΠΈ.
β4. ΠΠ»Π°ΡΡΠΈΠΊΠΎΠ²ΡΠ΅ ΠΎΡΠΊΠΎΡΡ, ΠΈΠ»ΠΈ ΠΠΠ₯-ΠΏΠ°Π½Π΅Π»ΠΈ
ΠΠ»Π°ΡΡΠΈΠΊΠΎΠ²ΡΠ΅ ΠΏΠ°Π½Π΅Π»ΠΈ ΠΏΠΎΠ·Π²ΠΎΠ»ΡΡΡ Π²ΡΠΏΠΎΠ»Π½ΠΈΡΡ ΠΎΡΠΎΡΠΌΠ»Π΅Π½ΠΈΠ΅ ΠΎΡΠΊΠΎΡΠΎΠ² Π±ΡΠΊΠ²Π°Π»ΡΠ½ΠΎ Π·Π° ΠΎΠ΄ΠΈΠ½ Π΄Π΅Π½Ρ. ΠΠ΅ Π½Π°Π΄ΠΎ ΠΆΠ΄Π°ΡΡ, ΠΏΠΎΠΊΠ° ΠΏΡΠΎΡΠΎΡ Π½Π΅Ρ ΡΡΡΠΊΠ°ΡΡΡΠΊΠ° ΠΈΠ»ΠΈ ΠΊΡΠ°ΡΠΊΠ°. Π ΠΎΡΠ½ΠΎΠ²Π½ΡΠΌ ΠΏΡΠ΅ΠΈΠΌΡΡΠ΅ΡΡΠ²Π°ΠΌ, ΠΊΡΠΎΠΌΠ΅ Π²ΡΡΠΎΠΊΠΎΠΉ ΡΠΊΠΎΡΠΎΡΡΠΈ ΡΠ°Π±ΠΎΡ, ΠΎΡΠ½ΠΎΡΡΡ:
- Π΄ΠΎΠ»Π³ΠΎΠ²Π΅ΡΠ½ΠΎΡΡΡ;
- Π³ΠΈΠ³ΠΈΠ΅Π½ΠΈΡΠ½ΠΎΡΡΡ. ΠΠ»Π°ΡΡΠΈΠΊ ΠΏΡΠΎΡΡ Π² ΡΡ ΠΎΠ΄Π΅, Π½Π° Π½Π΅ΠΌ Π½Π΅ ΡΠ°Π·Π²ΠΈΠ²Π°Π΅ΡΡΡ ΠΏΠ»Π΅ΡΠ΅Π½Ρ;
- Π΅ΡΠ»ΠΈ ΡΠ°ΠΌΡ ΠΎΠΊΠΎΠ½ ΡΠ°ΠΊΠΆΠ΅ ΠΏΠ»Π°ΡΡΠΈΠΊΠΎΠ²ΡΠ΅, ΡΠΎ ΠΏΡΠΈ ΠΈΠ·ΠΌΠ΅Π½Π΅Π½ΠΈΠΈ ΡΠ΅ΠΌΠΏΠ΅ΡΠ°ΡΡΡΡ Π±ΡΠ΄Π΅Ρ ΠΏΡΠΎΠΈΡΡ ΠΎΠ΄ΠΈΡΡ ΡΠ°Π²Π½ΠΎΠΌΠ΅ΡΠ½ΠΎΠ΅ ΡΠ°ΡΡΠΈΡΠ΅Π½ΠΈΠ΅, Π½Π΅ Π±ΡΠ΄Π΅Ρ ΡΠΎΠ·Π΄Π°Π²Π°ΡΡΡΡ Π»ΠΈΡΠ½Π΅Π΅ Π½Π°ΠΏΡΡΠΆΠ΅Π½ΠΈΠ΅, Π° Π·Π½Π°ΡΠΈΡ, ΠΎΡΠΊΠΎΡΡ ΠΏΡΠΎΡΠ»ΡΠΆΠ°Ρ Π΄ΠΎΠ»ΡΡΠ΅;
- ΡΡΡΠ΅ΡΠΈΡΠ½ΡΠΉ Π²Π½Π΅ΡΠ½ΠΈΠΉ Π²ΠΈΠ΄.

ΠΠΎΠ΄ ΠΏΠ»Π°ΡΡΠΈΠΊΠΎΠ²ΡΠΌΠΈ ΠΏΠ°Π½Π΅Π»ΡΠΌΠΈ Π±ΡΠ΄Π΅ΠΌ ΠΏΠΎΠ½ΠΈΠΌΠ°ΡΡ ΡΡΠ΅Π½ΠΎΠ²ΡΠ΅ ΠΏΠ°Π½Π΅Π»ΠΈ, ΠΊΠΎΡΠΎΡΡΠ΅ ΠΌΠ΅ΠΆΠ΄Ρ Π²Π½Π΅ΡΠ½ΠΈΠΌ ΠΈ Π²Π½ΡΡΡΠ΅Π½Π½ΠΈΠΌ ΡΠ»ΠΎΠ΅ΠΌ ΠΏΠ»Π°ΡΡΠΈΠΊΠ° ΠΈΠΌΠ΅ΡΡ ΠΏΡΡΡΠΎΡΡ ΠΈ ΡΠ΅Π±ΡΠ° ΠΆΠ΅ΡΡΠΊΠΎΡΡΠΈ. Π’ΠΎΠ»ΡΠΈΠ½Π° ΠΏΠ°Π½Π΅Π»Π΅ΠΉ ΠΏΠΎΡΡΠ΄ΠΊΠ° 1 ΡΠΌ, ΡΠΈΡΠΈΠ½Π° β 25-37,5 ΡΠΌ, Π΄Π»ΠΈΠ½Π° β ΠΎΡ 2,7 Π΄ΠΎ 3 ΠΌ. Π’Π°ΠΊΠΈΠ΅ ΠΏΠ°Π½Π΅Π»ΠΈ Π½Π΅ΠΆΠ½Π΅Π΅ ΡΠ΅Ρ , ΡΡΠΎ ΠΎΡΠ½Π°ΡΠ΅Π½Ρ Π΄ΠΎΠΏΠΎΠ»Π½ΠΈΡΠ΅Π»ΡΠ½ΡΠΌ ΡΡΠ΅ΠΏΠ»ΠΈΡΠ΅Π»ΡΠ½ΡΠΌ ΡΠ»ΠΎΠ΅ΠΌ (ΡΡΠ½Π΄Π²ΠΈΡ-ΠΏΠ°Π½Π΅Π»ΠΈ, ΠΎ Π½ΠΈΡ ΠΏΠΎΠ·ΠΆΠ΅), ΠΏΠΎΡΡΠΎΠΌΡ ΠΊΡΠ΅ΠΏΠΈΡΡ ΠΈΡ Π½Π° ΠΎΡΠΊΠΎΡΡ Π³Π»ΡΠ±ΠΈΠ½ΠΎΠΉ Π±ΠΎΠ»Π΅Π΅ 25 ΡΠΌ Π½Π΅ ΡΠ΅ΠΊΠΎΠΌΠ΅Π½Π΄ΡΠ΅ΡΡΡ β ΠΌΠΎΠ³ΡΡ ΡΠ»ΡΡΠΈΡΡΡΡ ΠΏΠΎΠ²ΡΠ΅ΠΆΠ΄Π΅Π½ΠΈΡ. ΠΠΎΠ΄ ΡΠ°ΠΊΠΈΠ΅ ΠΏΠ°Π½Π΅Π»ΠΈ ΡΠ΅ΠΊΠΎΠΌΠ΅Π½Π΄ΡΠ΅ΡΡΡ ΠΈΡΠΏΠΎΠ»ΡΠ·ΠΎΠ²Π°ΡΡ Π² ΠΊΠ°ΡΠ΅ΡΡΠ²Π΅ ΡΡΠ΅ΠΏΠ»ΠΈΡΠ΅Π»Ρ ΠΌΠΈΠ½Π΅ΡΠ°Π»ΡΠ½ΡΡ Π²Π°ΡΡ ΠΈΠ»ΠΈ ΠΌΠΎΠ½ΡΠ°ΠΆΠ½ΡΡ ΠΏΠ΅Π½Ρ. Π‘ΡΡΠΊΠΈ ΠΎΠ±ΡΠ·Π°ΡΠ΅Π»ΡΠ½ΠΎ ΠΏΡΠΈΠΊΡΡΠ²Π°ΡΡ Π΄Π΅ΠΊΠΎΡΠ°ΡΠΈΠ²Π½ΡΠΌ ΡΠ³ΠΎΠ»ΠΊΠΎΠΌ.
ΠΠΎΠ»ΡΡΠΈΠ½ΡΡΠ²ΠΎ ΠΏΠ»Π°ΡΡΠΈΠΊΠΎΠ²ΡΡ ΠΏΠ°Π½Π΅Π»Π΅ΠΉ Π²ΡΠΏΠΎΠ»Π½Π΅Π½Ρ Π² Π±Π΅Π»ΠΎΠΌ ΡΠ²Π΅ΡΠ΅. ΠΡΡΡ ΠΌΠ°ΡΠΎΠ²ΡΠ΅ ΠΈ Π³Π»ΡΠ½ΡΠ΅Π²ΡΠ΅ Π²Π°ΡΠΈΠ°Π½ΡΡ. ΠΠ°ΡΠΎΠ²ΡΠ΅ ΠΈΠ·Π΄Π΅Π»ΠΈΡ ΡΠΌΠΎΡΡΡΡΡΡ Π±Π»Π°Π³ΠΎΡΠΎΠ΄Π½Π΅Π΅ ΠΈ ΡΠΏΠΎΠΊΠΎΠΉΠ½Π΅Π΅, Π΄Π° ΠΈ Π½Π° ΡΠΎΠ»Π½ΡΠ΅ Π½Π΅ Π±Π»ΠΈΠΊΡΡΡ. ΠΠΎΠΆΠ½ΠΎ ΠΎΡΡΡΠΊΠ°ΡΡ ΠΏΠ°Π½Π΅Π»ΠΈ, ΠΎΠΊΡΠ°ΡΠ΅Π½Π½ΡΠ΅ Π² Π΄ΡΡΠ³ΠΈΠ΅ ΡΠ²Π΅ΡΠ°, Π° ΡΠ°ΠΊΠΆΠ΅ Π²ΡΠΏΠΎΠ»Π½Π΅Π½Π½ΡΠ΅ ΠΏΠΎΠ΄ Π΄Π΅ΡΠ΅Π²ΠΎ. Π’Π°ΠΊΠΈΠ΅ Π²Π°ΡΠΈΠ°Π½ΡΡ ΡΠΌΠ΅ΡΡΠ½Ρ, Π΅ΡΠ»ΠΈ ΠΈ ΡΠ°ΠΌΠ° Ρ Π²Π°Ρ Π½Π΅ΡΡΠ°Π½Π΄Π°ΡΡΠ½Π°Ρ, Ρ.Π΅. Π½Π΅ Π±Π΅Π»ΠΎΠ³ΠΎ ΡΠ²Π΅ΡΠ°.
ΠΠΎΡΡΠ΄ΠΎΠΊ ΡΠ°Π±ΠΎΡ ΠΏΡΠΈ ΠΌΠΎΠ½ΡΠ°ΠΆΠ΅ ΠΠΠ₯-ΠΏΠ°Π½Π΅Π»Π΅ΠΉ ΡΠ°ΠΊΠΎΠ²:
- ΠΏΠΎΠ΄Π³ΠΎΡΠΎΠ²ΠΊΠ° ΠΏΠΎΠ²Π΅ΡΡ Π½ΠΎΡΡΠΈ, ΡΠ΄Π°Π»Π΅Π½ΠΈΠ΅ ΠΈΠ·Π»ΠΈΡΠΊΠΎΠ² ΠΌΠΎΠ½ΡΠ°ΠΆΠ½ΠΎΠΉ ΠΏΠ΅Π½Ρ, ΠΎΡΠΈΡΡΠΊΠ° ΠΎΡ ΠΏΡΠ»ΠΈ ΠΈ Π³ΡΡΠ·ΠΈ;
- ΠΎΠ±ΡΠ°Π±ΠΎΡΠΊΠ° ΠΎΡΠΊΠΎΡΠΎΠ² Π³ΡΡΠ½ΡΠΎΠ²ΠΊΠΎΠΉ Ρ Π°Π½ΡΠΈΡΠ΅ΠΏΡΠΈΠΊΠΎΠΌ. ΠΠΎΠ³Π΄Π° ΠΏΠΎΠ²Π΅ΡΡ Π½ΠΎΡΡΡ ΠΏΡΠΎΡΠΎΡ Π½Π΅Ρ, ΠΌΠΎΠΆΠ½ΠΎ ΠΏΡΠΈΡΡΡΠΏΠ°ΡΡ ΠΊ ΡΠ»Π΅Π΄ΡΡΡΠΈΠΌ ΡΡΠ°ΠΏΠ°ΠΌ;
- ΠΌΠΎΠ½ΡΠ°ΠΆ L-ΠΏΡΠΎΡΠΈΠ»Ρ ΠΏΠΎ ΠΏΠ΅ΡΠΈΠΌΠ΅ΡΡΡ ΡΠ°ΠΌΡ, ΠΏΡΠΎΡΠΈΠ»Ρ ΠΊΡΠ΅ΠΏΠΈΡΡΡ ΡΠ°ΠΌΠΎΡΠ΅Π·Π°ΠΌΠΈ Ρ ΡΠ°Π³ΠΎΠΌ 20-25 ΡΠΌ;

- ΠΏΠΎ Π²Π½Π΅ΡΠ½Π΅ΠΌΡ ΠΊΡΠ°Ρ ΠΎΡΠΊΠΎΡΠ° ΠΊΡΠ΅ΠΏΠΈΡΡΡ Π΄Π΅ΡΠ΅Π²ΡΠ½Π½Π°Ρ ΡΠ΅ΠΉΠΊΠ° ΡΠΈΡΠΈΠ½ΠΎΠΉ 10-12 ΡΠΌ ΠΈ ΡΠΎΠ»ΡΠΈΠ½ΠΎΠΉ 10-12 ΠΌΠΌ. Π ΠΏΠΎΡΠ»Π΅Π΄ΡΡΡΠ΅ΠΌ Π½Π° Π΄Π΅ΡΠ΅Π²ΡΠ½Π½ΡΡ ΡΠ΅ΠΉΠΊΡ ΠΎΠ΄Π΅Π½Π΅ΡΡΡ ΡΠ°ΡΡΡ ΡΠΏΠ΅ΡΠΈΠ°Π»ΡΠ½ΠΎΠ³ΠΎ ΠΏΡΠΎΡΠΈΠ»Ρ, Π²ΡΠΎΡΠ°Ρ ΡΠ°ΡΡΡ ΠΌΠΎΠ½ΡΠΈΡΡΠ΅ΡΡΡ Π½Π° ΠΏΠ°Π½Π΅Π»Ρ, Π² ΠΏΠΎΡΠ»Π΅Π΄ΡΡΡΠ΅ΠΌ Π΄Π²Π΅ ΡΠ°ΡΡΠΈ Π·Π°ΠΊΡΡΠ²Π°ΡΡΡΡ ΠΏΠΎ ΡΠΈΡΡΠ΅ΠΌΠ΅ Β«ΡΠΈΠΏ-ΠΏΠ°Π·Β». Π‘ΡΡΠΊ ΠΏΠ°Π½Π΅Π»ΠΈ ΠΈ ΠΎΡΠΊΠΎΡΠ° ΠΌΠΎΠΆΠ½ΠΎ Π·Π°ΠΊΡΡΡΡ ΡΠ³ΠΎΠ»ΠΊΠΎΠΌ, ΠΌΠΎΠ½ΡΠΈΡΡΠ΅ΠΌΡΠΌ Π½Π° ΡΠ°ΠΌΠΎΡΠ΅Π·Ρ, Π½ΠΎ ΡΠΎΠ³Π΄Π° Π±ΡΠ΄ΡΡ Π²ΠΈΠ΄Π½Ρ ΠΈΡ ΡΠ»ΡΠΏΠΊΠΈ. ΠΡΠ΅ ΠΎΠ΄ΠΈΠ½ Π²Π°ΡΠΈΠ°Π½Ρ β ΠΌΠΎΠ½ΡΠ°ΠΆ Π½Π° ΠΆΠΈΠ΄ΠΊΠΈΠ΅ Π³Π²ΠΎΠ·Π΄ΠΈ;
- ΠΏΠΎΠ΄Π³ΠΎΡΠΎΠ²ΠΊΠ° ΠΏΠ°Π½Π΅Π»Π΅ΠΉ Π½Π΅ΠΎΠ±Ρ ΠΎΠ΄ΠΈΠΌΠΎΠ³ΠΎ ΡΠ°Π·ΠΌΠ΅ΡΠ°;
- Π½Π° ΡΡΠ΅Π½Ρ Ρ ΠΏΠΎΠΌΠΎΡΡΡ ΠΆΠΈΠ΄ΠΊΠΈΡ Π³Π²ΠΎΠ·Π΄Π΅ΠΉ ΠΊΡΠ΅ΠΏΡΡ ΠΌΠΈΠ½Π΅ΡΠ°Π»ΡΠ½ΡΡ Π²Π°ΡΡ, ΠΏΡΠΈΡΠ΅ΠΌ ΡΠΎΠ»ΡΠΈΠ½Π° Π΅Π΅ ΡΠ»ΠΎΡ ΠΎΠΊΠΎΠ»ΠΎ ΡΠ°ΠΌΡ Π±ΡΠ΄Π΅Ρ ΠΌΠ°ΠΊΡΠΈΠΌΠ°Π»ΡΠ½ΠΎΠΉ, Π° ΠΎΠΊΠΎΠ»ΠΎ Π²Π½Π΅ΡΠ½Π΅Π³ΠΎ ΠΊΡΠ°Ρ ΠΎΡΠΊΠΎΡΠ° β ΠΌΠΈΠ½ΠΈΠΌΠ°Π»ΡΠ½ΠΎΠΉ. ΠΠΌΠ΅ΡΡΠΎ ΠΌΠΈΠ½Π΅ΡΠ°Π»ΡΠ½ΠΎΠΉ Π²Π°ΡΡ ΡΠ°ΡΡΠΎ ΠΈΡΠΏΠΎΠ»ΡΠ·ΡΠ΅ΡΡΡ ΠΌΠΎΠ½ΡΠ°ΠΆΠ½Π°Ρ ΠΏΠ΅Π½Π°, ΠΊΠΎΡΠΎΡΠ°Ρ Π½Π΅ΠΏΠΎΡΡΠ΅Π΄ΡΡΠ²Π΅Π½Π½ΠΎ ΠΏΠ΅ΡΠ΅Π΄ ΠΌΠΎΠ½ΡΠ°ΠΆΠΎΠΌ ΠΏΠ°Π½Π΅Π»ΠΈ Π½Π°Π½ΠΎΡΠΈΡΡΡ Π½Π° ΠΏΠ°Π½Π΅Π»Ρ, Π½ΠΎ ΡΡΠΎ ΡΠΏΠΎΡΠΎΠ± Π΄Π»Ρ ΠΏΡΠΎΡΠ΅ΡΡΠΈΠΎΠ½Π°Π»ΠΎΠ², ΡΠ°ΠΊ ΠΊΠ°ΠΊ ΡΠ°ΡΡΡΠΈΡΠ°ΡΡ Π½Π΅ΠΎΠ±Ρ ΠΎΠ΄ΠΈΠΌΠΎΠ΅ ΠΊΠΎΠ»ΠΈΡΠ΅ΡΡΠ²ΠΎ ΠΏΠ΅Π½Ρ ΠΎΡΠ΅Π½Ρ ΡΠ»ΠΎΠΆΠ½ΠΎ. ΠΠ·Π±ΡΡΠΎΠΊ ΠΌΠΎΠΆΠ΅Ρ Π½Π°ΡΡΡΠΈΡΡ Π³Π΅ΠΎΠΌΠ΅ΡΡΠΈΡ ΠΏΠ°Π½Π΅Π»ΠΈ, Π° ΠΎΡΡΠ°ΡΠΊΠΈ ΠΏΠ΅Π½Ρ ΠΏΡΠ°ΠΊΡΠΈΡΠ΅ΡΠΊΠΈ Π½Π΅Π²ΠΎΠ·ΠΌΠΎΠΆΠ½ΠΎ ΡΠ±ΡΠ°ΡΡ Ρ ΠΏΠ°Π½Π΅Π»ΠΈ;
- Π² ΡΠ³ΠΎΠ» ΠΌΠ΅ΠΆΠ΄Ρ Π±ΠΎΠΊΠΎΠ²ΡΠΌ ΠΈ Π²Π΅ΡΡ Π½ΠΈΠΌ ΠΎΡΠΊΠΎΡΠΎΠΌ Π½Π° ΠΆΠΈΠ΄ΠΊΠΈΠ΅ Π³Π²ΠΎΠ·Π΄ΠΈ ΡΠΈΠΊΡΠΈΡΡΠ΅ΡΡΡ ΠΏΡΠΎΡΠΈΠ»Ρ, ΠΈΠΌΠ΅Π½ΡΠ΅ΠΌΡΠΉ Β«Π²Π½ΡΡΡΠ΅Π½Π½ΠΈΠΉ ΡΠ³ΠΎΠ»Β»;
- Π±ΠΎΠΊΠΎΠ²ΡΠ΅ ΠΎΡΠΊΠΎΡΡ Π·Π°ΡΠ΅Π»ΠΊΠΈΠ²Π°ΡΡ Π² LβΠΏΡΠΎΡΠΈΠ»Ρ, ΠΊ Π΄Π΅ΡΠ΅Π²ΡΠ½Π½ΡΠΌ ΡΠ΅ΠΉΠΊΠ°ΠΌ ΠΏΡΠΎΡΠΈΠ»Ρ ΠΌΠΎΠΆΠ½ΠΎ ΠΊΡΠ΅ΠΏΠΈΡΡ ΡΡΠ΅ΠΏΠ»Π΅ΡΠΎΠΌ. ΠΠ΅ΠΊΠΎΡΠΎΡΡΠ΅ ΡΠΏΠ΅ΡΠΈΠ°Π»ΠΈΡΡΡ ΠΈ Π²ΠΎΠ²ΡΠ΅ ΠΊΡΠ΅ΠΏΡΡ ΠΏΠ»Π°ΡΡΠΈΠΊΠΎΠ²ΡΠ΅ ΠΏΠ°Π½Π΅Π»ΠΈ ΠΊ ΠΎΡΠΈΡΠ΅Π½Π½ΠΎΠΉ ΠΏΠΎΠ²Π΅ΡΡ
Π½ΠΎΡΡΠΈ ΠΎΡΠΊΠΎΡΠ° Π½Π° ΠΆΠΈΠ΄ΠΊΠΈΠ΅ Π³Π²ΠΎΠ·Π΄ΠΈ;

- ΠΌΠΎΠ½ΡΠ°ΠΆ Π²Π΅ΡΡ Π½Π΅ΠΉ ΠΏΠ°Π½Π΅Π»ΠΈ Π² ΠΏΠ°Π·Ρ ΠΏΡΠΎΡΠΈΠ»Π΅ΠΉ Β«Π²Π½ΡΡΡΠ΅Π½Π½ΠΈΠΉ ΡΠ³ΠΎΠ»Β»;
- ΡΠΈΠΊΡΠ°ΡΠΈΡ Π΄Π΅ΠΊΠΎΡΠ°ΡΠΈΠ²Π½ΠΎΠ³ΠΎ ΡΠ³ΠΎΠ»ΠΊΠ°;
- ΡΠ΅ΠΏΠ΅ΡΡ ΠΌΠΎΠΆΠ½ΠΎ ΡΠ½ΠΈΠΌΠ°ΡΡ Π·Π°ΡΠΈΡΠ½ΡΡ ΠΏΠ»Π΅Π½ΠΊΡ.
ΠΠ°ΡΡΠΆΠ½ΡΠ΅ ΠΎΡΠΊΠΎΡΡ ΠΏΠ»Π°ΡΡΠΈΠΊΠΎΠ²ΡΠΌΠΈ ΠΏΠ°Π½Π΅Π»ΡΠΌΠΈ Π»ΡΡΡΠ΅ Π½Π΅ ΠΎΡΠ΄Π΅Π»ΡΠ²Π°ΡΡ, ΡΠ°ΠΊ ΠΊΠ°ΠΊ ΡΡΠΎΡ ΠΌΠ°ΡΠ΅ΡΠΈΠ°Π» ΠΏΡΠΈ Π½ΠΈΠ·ΠΊΠΈΡ ΡΠ΅ΠΌΠΏΠ΅ΡΠ°ΡΡΡΠ°Ρ ΡΡΠ°Π½ΠΎΠ²ΠΈΡΡΡ ΡΠ»ΠΈΡΠΊΠΎΠΌ Ρ ΡΡΠΏΠΊΠΈΠΌ, Π° Π² ΠΎΡΠ΅ΡΠ΅ΡΡΠ²Π΅Π½Π½ΡΡ ΡΡΠ»ΠΎΠ²ΠΈΡΡ ΡΡΠΎ Π·Π½Π°ΡΠΈΡ, ΡΡΠΎ ΡΠΆΠ΅ Π½Π° ΡΠ»Π΅Π΄ΡΡΡΠΈΠΉ ΡΠ΅Π·ΠΎΠ½ ΠΏΡΠΈΠ΄Π΅ΡΡΡ Π²ΡΠ΅ ΠΏΠ΅ΡΠ΅Π΄Π΅Π»ΡΠ²Π°ΡΡ.
β5. Π‘ΡΠ½Π΄Π²ΠΈΡ-ΠΏΠ°Π½Π΅Π»ΠΈ ΠΏΡΠΈ ΠΎΡΠΎΡΠΌΠ»Π΅Π½ΠΈΠΈ ΠΎΠΊΠΎΠ½Π½ΠΎΠ³ΠΎ ΠΎΡΠΊΠΎΡΠ°
Π‘ΡΠ½Π΄Π²ΠΈΡ-ΠΏΠ°Π½Π΅Π»Ρ β Π±ΠΎΠ»Π΅Π΅ ΠΏΡΠΎΠ΄Π²ΠΈΠ½ΡΡΡΠΉ Π²Π°ΡΠΈΠ°Π½Ρ ΠΎΠ±ΡΡΠ½ΠΎΠΉ ΠΏΠ»Π°ΡΡΠΈΠΊΠΎΠ²ΠΎΠΉ ΠΏΠ°Π½Π΅Π»ΠΈ. ΠΠ΅ΠΆΠ΄Ρ Π»ΠΈΡΡΠ°ΠΌΠΈ ΠΏΠ»Π°ΡΡΠΈΠΊΠ° Π·Π΄Π΅ΡΡ Π½Π°Ρ ΠΎΠ΄ΠΈΡΡΡ ΡΠ»ΠΎΠΉ ΡΠΊΡΡΡΡΠ΄ΠΈΡΠΎΠ²Π°Π½Π½ΠΎΠ³ΠΎ ΠΈΠ»ΠΈ Π²ΡΠΏΠ΅Π½Π΅Π½Π½ΠΎΠ³ΠΎ ΠΏΠΎΠ»ΠΈΡΡΠΈΡΠΎΠ»Π°, ΠΊΠΎΡΠΎΡΡΠΉ ΠΏΡΠΈΠ΄Π°Π΅Ρ ΠΏΠ»ΠΈΡΠ΅ Π΄ΠΎΠΏΠΎΠ»Π½ΠΈΡΠ΅Π»ΡΠ½ΡΡ ΠΏΡΠΎΡΠ½ΠΎΡΡΡ ΠΈ ΡΠ»ΡΡΡΠ΅Π½Π½ΡΠ΅ ΡΠ΅ΠΏΠ»ΠΎ- ΠΈ Π·Π²ΡΠΊΠΎΠΈΠ·ΠΎΠ»ΡΡΠΈΠΎΠ½Π½ΡΠ΅ ΠΊΠ°ΡΠ΅ΡΡΠ²Π°. Π’ΠΎΠ»ΡΠΈΠ½Π° ΡΠ°ΠΊΠΈΡ ΠΏΠ°Π½Π΅Π»Π΅ΠΉ ΠΊΠΎΠ»Π΅Π±Π»Π΅ΡΡΡ ΠΎΡ 8 Π΄ΠΎ 36 ΠΌΠΌ, Π½ΠΎ Π΄Π»Ρ ΠΎΠΊΠΎΠ½Π½ΡΡ ΠΎΡΠΊΠΎΡΠΎΠ² Π»ΡΡΡΠ΅ Π²ΡΠ΅Π³ΠΎ ΠΏΠΎΠ΄Ρ ΠΎΠ΄ΡΡ ΠΏΠ°Π½Π΅Π»ΠΈ ΡΠΎΠ»ΡΠΈΠ½ΠΎΠΉ 10 ΠΌΠΌ.
ΠΡΠ΅ ΠΏΡΠ΅ΠΈΠΌΡΡΠ΅ΡΡΠ²Π° ΡΡΠ½Π΄Π²ΠΈΡ-ΠΏΠ°Π½Π΅Π»Π΅ΠΉ ΡΠ°ΠΊΠΈΠ΅ ΠΆΠ΅, ΠΊΠ°ΠΊ ΠΈ Ρ ΠΏΠ»Π°ΡΡΠΈΠΊΠΎΠ²ΡΡ ΠΏΠ°Π½Π΅Π»Π΅ΠΉ. ΠΠΎΠΏΠΎΠ»Π½ΠΈΡΠ΅Π»ΡΠ½ΡΠΉ Π±ΠΎΠ½ΡΡ β ΠΊΠ°ΡΠ΅ΡΡΠ²Π΅Π½Π½ΠΎΠ΅ ΡΡΠ΅ΠΏΠ»Π΅Π½ΠΈΠ΅, ΡΠ°ΠΊ ΡΡΠΎ ΠΏΡΠΈ ΠΌΠΎΠ½ΡΠ°ΠΆΠ΅ ΠΌΠΎΠΆΠ½ΠΎ ΠΎΠ±ΠΎΠΉΡΠΈΡΡ Π±Π΅Π· ΠΌΠΈΠ½Π΅ΡΠ°Π»ΡΠ½ΠΎΠΉ Π²Π°ΡΡ. ΠΠΈΠ½ΡΡ β ΠΏΡΠΈ ΠΏΠΎΠ²ΡΡΠ΅Π½Π½ΠΎΠΉ Π²Π»Π°ΠΆΠ½ΠΎΡΡΠΈ ΠΏΠ°Π½Π΅Π»ΠΈ ΠΌΠΎΠ³ΡΡ ΡΠ°ΡΡΠ»ΠΎΠΈΡΡΡΡ, ΡΠ°ΠΊ ΡΡΠΎ Π΄Π»Ρ Π²Π½Π΅ΡΠ½Π΅ΠΉ ΠΎΡΠ΄Π΅Π»ΠΊΠΈ ΠΎΠ½ΠΈ ΡΠ²Π½ΠΎ Π½Π΅ ΠΏΠΎΠ΄Ρ ΠΎΠ΄ΡΡ.
ΠΡΠΎΡΠ΅ΡΡ ΠΌΠΎΠ½ΡΠ°ΠΆΠ° Π²Π΅Π΄Π΅ΡΡΡ ΠΏΠΎ ΡΠΎΠΉ ΠΆΠ΅ ΡΡ Π΅ΠΌΠ΅, ΡΡΠΎ ΠΈ Π² ΡΠ»ΡΡΠ°Π΅ Ρ ΠΎΠ±ΡΡΠ½ΡΠΌΠΈ ΠΏΠ»Π°ΡΡΠΈΠΊΠΎΠ²ΡΠΌΠΈ ΠΏΠ°Π½Π΅Π»ΡΠΌΠΈ. ΠΠ΅ΠΊΠΎΡΠΎΡΡΠ΅ ΠΎΡΡΡΠ΅ΡΡΠ²Π»ΡΡΡ ΠΊΡΠ΅ΠΏΠ»Π΅Π½ΠΈΠ΅ Π½Π΅ΠΏΠΎΡΡΠ΅Π΄ΡΡΠ²Π΅Π½Π½ΠΎ Π½Π° ΠΎΡΠΊΠΎΡ ΠΏΡΠΈ ΠΏΠΎΠΌΠΎΡΠΈ ΠΆΠΈΠ΄ΠΊΠΈΡ Π³Π²ΠΎΠ·Π΄Π΅ΠΉ.

β6. ΠΡΠ΄Π΅Π»ΠΊΠ° Π΄Π΅ΠΊΠΎΡΠ°ΡΠΈΠ²Π½ΡΠΌ ΠΊΠ°ΠΌΠ½Π΅ΠΌ
ΠΠ°ΡΡΡΠ°Π»ΡΠ½ΡΠΉ ΠΊΠ°ΠΌΠ΅Π½Ρ β ΡΡΠΎ, ΠΊΠΎΠ½Π΅ΡΠ½ΠΎ, ΠΊΡΠ°ΡΠΈΠ²ΠΎ ΠΈ ΠΏΡΠΎΡΠ½ΠΎ, Π½ΠΎ ΠΎΡΠ΅Π½Ρ Π΄ΠΎΡΠΎΠ³ΠΎ ΠΈ ΡΡΠΆΠ΅Π»ΠΎ. ΠΠ΅ Π²ΡΡΠΊΠΈΠΉ ΠΎΡΠΊΠΎΡ ΡΠΏΠΎΡΠΎΠ±Π΅Π½ Π²ΡΠ΄Π΅ΡΠΆΠ°ΡΡ ΠΏΠΎΠ΄ΠΎΠ±Π½ΡΡ Π½Π°Π³ΡΡΠ·ΠΊΡ, ΡΠ°ΠΊ ΡΡΠΎ Π»ΡΡΡΠ΅ Π² ΠΊΠ°ΡΠ΅ΡΡΠ²Π΅ ΠΎΡΠ΄Π΅Π»ΠΊΠΈ ΠΏΡΠΈΠΌΠ΅Π½ΡΡΡ Π΄Π΅ΠΊΠΎΡΠ°ΡΠΈΠ²Π½ΡΠΉ ΠΊΠ°ΠΌΠ΅Π½Ρ. ΠΠ³ΠΎ ΠΈΠ·Π³ΠΎΡΠ°Π²Π»ΠΈΠ²Π°ΡΡ Π½Π° ΠΎΡΠ½ΠΎΠ²Π΅ ΡΠ΅ΠΌΠ΅Π½ΡΠ° ΠΈ Π³ΠΈΠΏΡΠ°. Π ΠΈΡΠΎΠ³Π΅ ΠΏΠΎΠ»ΡΡΠ°ΡΡΡΡ ΠΊΡΠ΅ΠΏΠΊΠΈΠ΅ ΠΎΠ±ΡΠ°Π·ΡΡ, ΠΊΠΎΡΠΎΡΡΠ΅ Π²Π½Π΅ΡΠ½Π΅ Π½ΠΈΠΊΠ°ΠΊ Π½Π΅ ΠΎΡΠ»ΠΈΡΠ°ΡΡΡΡ ΠΎΡ Π½Π°ΡΡΡΠ°Π»ΡΠ½ΠΎΠ³ΠΎ ΠΊΠ°ΠΌΠ½Ρ, Π²ΡΠ΄Π΅ΡΠΆΠΈΠ²Π°ΡΡ ΠΏΠΎΠ²ΡΡΠ΅Π½Π½ΡΡ Π²Π»Π°ΠΆΠ½ΠΎΡΡΡ, ΠΏΠ΅ΡΠ΅ΠΏΠ°Π΄Ρ ΡΠ΅ΠΌΠΏΠ΅ΡΠ°ΡΡΡ ΠΈ ΠΏΡΠΎΡΠΈΠ΅ Π½Π΅Π³Π°ΡΠΈΠ²Π½ΡΠ΅ ΡΠ°ΠΊΡΠΎΡΡ. ΠΠ΅ΠΊΠΎΡΠ°ΡΠΈΠ²Π½ΡΠΉ ΠΊΠ°ΠΌΠ΅Π½Ρ ΠΌΠΎΠΆΠ½ΠΎ ΠΈΡΠΏΠΎΠ»ΡΠ·ΠΎΠ²Π°ΡΡ ΠΈ Π΄Π»Ρ Π²Π½ΡΡΡΠ΅Π½Π½ΠΈΡ , ΠΈ Π΄Π»Ρ Π½Π°ΡΡΠΆΠ½ΡΡ ΠΎΡΠΊΠΎΡΠΎΠ². ΠΡΠΎΠ±Π΅Π½Π½ΠΎ Π²ΡΠ³ΠΎΠ΄Π½ΠΎ ΠΎΠ½ ΡΠΌΠΎΡΡΠΈΡΡΡ Ρ Π΄Π΅ΡΠ΅Π²ΡΠ½Π½ΡΠΌΠΈ ΡΠ°ΠΌΠ°ΠΌΠΈ.

Π ΠΏΡΠ΅ΠΈΠΌΡΡΠ΅ΡΡΠ²Π° Π΄Π΅ΠΊΠΎΡΠ°ΡΠΈΠ²Π½ΠΎΠ³ΠΎ ΠΊΠ°ΠΌΠ½Ρ ΡΠ°ΠΊΠΆΠ΅ ΡΡΠΎΠΈΡ ΠΎΡΠ½Π΅ΡΡΠΈ ΡΠΈΠΊΠ°ΡΠ½ΡΠΉ Π²Π½Π΅ΡΠ½ΠΈΠΉ Π²ΠΈΠ΄ ΠΈ ΠΎΠ³ΡΠΎΠΌΠ½ΠΎΠ΅ ΡΠ°Π·Π½ΠΎΠΎΠ±ΡΠ°Π·ΠΈΠ΅. ΠΡΠΊΠΎΡΡ ΠΌΠΎΠΆΠ½ΠΎ Π±ΡΠ΄Π΅Ρ ΠΎΡΠ΄Π΅Π»Π°ΡΡ ΠΈ ΠΏΠΎΠ΄ ΠΊΠΈΡΠΏΠΈΡ, ΠΈ ΠΏΠΎΠ΄ ΡΠ»Π°Π½Π΅Ρ, ΠΈ ΠΏΠΎΠ΄ Π±ΡΡΠΎΠ²ΡΠΉ ΠΊΠ°ΠΌΠ΅Π½Ρ.
ΠΡΠ΄Π΅Π»ΠΊΠ° Π΄Π΅ΠΊΠΎΡΠ°ΡΠΈΠ²Π½ΡΠΌ ΠΊΠ°ΠΌΠ½Π΅ΠΌ Π²ΡΠΏΠΎΠ»Π½ΡΠ΅ΡΡΡ ΠΎΡΠ΅Π½Ρ ΠΏΡΠΎΡΡΠΎ:
- Π΅ΡΠ»ΠΈ ΠΏΠΎΠ²Π΅ΡΡ Π½ΠΎΡΡΡ ΠΎΡΠΊΠΎΡΠΎΠ² ΠΎΡΠ½ΠΎΡΠΈΡΠ΅Π»ΡΠ½ΠΎ ΡΠΎΠ²Π½Π°Ρ, Π±Π΅Π· ΡΠ΅ΡΡΠ΅Π·Π½ΡΡ Π΄Π΅ΡΠ΅ΠΊΡΠΎΠ², ΡΠΎ Π΅Π΅ ΠΌΠΎΠΆΠ½ΠΎ Π΄Π°ΠΆΠ΅ ΠΎΡΠΎΠ±Π΅Π½Π½ΠΎ ΠΈ Π½Π΅ ΠΏΠΎΠ΄Π³ΠΎΡΠ°Π²Π»ΠΈΠ²Π°ΡΡ. ΠΡΠΎΡΡΠΎ Π½Π°Π½Π΅ΡΠΈΡΠ΅ Π·Π°ΡΠ΅ΡΠΊΠΈ, ΡΡΠΎΠ±Ρ ΡΡΠ΅ΠΏΠ»Π΅Π½ΠΈΠ΅ Ρ Π³Π»Π°Π΄ΠΊΠΎΠΉ ΠΏΠΎΠ²Π΅ΡΡ Π½ΠΎΡΡΡΡ Π±ΡΠ»ΠΎ Π»ΡΡΡΠ΅, Π° ΠΏΠΎΡΠΎΠΌ ΠΏΡΠΎΠ³ΡΡΠ½ΡΡΠΉΡΠ΅ ΠΏΠΎΠ²Π΅ΡΡ Π½ΠΎΡΡΡ;
- Π΅ΡΠ»ΠΈ Π΅ΡΡΡ Π·Π½Π°ΡΠΈΡΠ΅Π»ΡΠ½ΡΠ΅ Π΄Π΅ΡΠ΅ΠΊΡΡ, ΡΠΎ Π»ΡΡΡΠ΅ ΠΏΡΠ΅Π΄Π²Π°ΡΠΈΡΠ΅Π»ΡΠ½ΠΎ ΠΎΡΡΡΠΊΠ°ΡΡΡΠΈΡΡ ΠΎΡΠΊΠΎΡΡ. ΠΡΠΈ ΠΈΡΠΏΠΎΠ»ΡΠ·ΠΎΠ²Π°Π½ΠΈΠΈ ΡΡΠΆΠ΅Π»ΠΎΠ³ΠΎ ΠΊΠ°ΠΌΠ½Ρ, Π½Π° Π΄Π°Π½Π½ΠΎΠΌ ΡΡΠ°ΠΏΠ΅ ΠΏΡΠΈΠΌΠ΅Π½ΠΈΡΠ΅ Π°ΡΠΌΠΈΡΡΡΡΡΡ ΡΠ΅ΡΠΊΡ;
- ΠΊΠ°ΠΌΠ΅Π½Ρ ΠΌΠΎΠ½ΡΠΈΡΡΡΡ Π½Π° ΡΠΏΠ΅ΡΠΈΠ°Π»ΡΠ½ΡΠΉ ΠΊΠ»Π΅ΠΉ, Π΅Π³ΠΎ Π³ΠΎΡΠΎΠ²ΡΡ ΠΏΠΎ ΠΈΠ½ΡΡΡΡΠΊΡΠΈΠΈ. ΠΡΠ»ΠΈ ΠΊΠ°ΠΌΠ΅Π½Ρ ΠΈΠΌΠ΅Π΅Ρ ΠΏΡΠΎΠΈΠ·Π²ΠΎΠ»ΡΠ½ΡΡ ΡΠΎΡΠΌΡ, ΡΠΎ ΠΆΠ΅Π»Π°ΡΠ΅Π»ΡΠ½ΠΎ Π·Π°ΡΠ°Π½Π΅Π΅ Π²ΡΠ»ΠΎΠΆΠΈΡΡ Π΅Π³ΠΎ Π½Π° Π³ΠΎΡΠΈΠ·ΠΎΠ½ΡΠ°Π»ΡΠ½ΠΎΠΉ ΠΏΠΎΠ²Π΅ΡΡ Π½ΠΎΡΡΠΈ, ΡΡΠΎΠ±Ρ ΠΏΠΎΡΠΎΠΌ Π½Π΅ Π²ΠΎΠ·Π½ΠΈΠΊΠ»ΠΎ ΠΏΡΠΎΠ±Π»Π΅ΠΌ ΡΠΎ ΡΡΡΠΊΠΎΠ²ΠΊΠΎΠΉ;
- ΠΊΠ»Π΅ΠΉ Π½Π°Π½ΠΎΡΡΡ ΡΠΏΠ°ΡΠ΅Π»Π΅ΠΌ ΠΈΠ»ΠΈ Π³ΡΠ΅Π±Π΅Π½ΠΊΠΎΠΉ, Π½Π°ΡΠΈΠ½Π°ΡΡ Π»ΡΡΡΠ΅ ΡΠ²Π΅ΡΡ Ρ, ΡΠΎΠ²Π½ΠΎΡΡΡ ΠΊΠΎΠ½ΡΡΠΎΠ»ΠΈΡΠΎΠ²Π°ΡΡ ΡΡΠΎΠ²Π½Π΅ΠΌ. ΠΡΠ»ΠΈ ΡΠ²Ρ Π½Π΅ ΠΏΡΠ΅Π΄ΡΡΠΌΠΎΡΡΠ΅Π½Ρ, ΡΠΎ ΡΠΊΠ»Π°Π΄ΠΊΡ ΠΎΡΡΡΠ΅ΡΡΠ²Π»ΡΡΡ Π²ΠΏΡΠΈΡΡΠΊ. ΠΡΠ»ΠΈ ΡΠ²Ρ Π½Π΅ΠΎΠ±Ρ ΠΎΠ΄ΠΈΠΌΡ, ΡΠΎ ΠΈΡΠΏΠΎΠ»ΡΠ·ΡΡΡ ΠΊΡΠ΅ΡΡΠΈΠΊΠΈ, ΠΊΠ°ΠΊ Π΄Π»Ρ ΠΏΠ»ΠΈΡΠΊΠΈ;
- ΠΏΠΎΠ΄ΡΠ΅Π·Π°ΡΡ ΠΊΠ°ΠΌΠ΅Π½Ρ Π½Π° ΠΎΡΠ½ΠΎΠ²Π΅ Π³ΠΈΠΏΡΠ° Π»ΡΡΡΠ΅ ΠΏΡΠΈ ΠΏΠΎΠΌΠΎΡΠΈ Π½ΠΎΠΆΠΎΠ²ΠΊΠΈ, Π° Π½Π° ΠΎΡΠ½ΠΎΠ²Π΅ ΡΠ΅ΠΌΠ΅Π½ΡΠ° β ΡΠΈΡΠΊΡΠ»ΡΡΠ½ΠΎΠΉ ΠΏΠ»ΠΈΡΠΎΠΉ;
- ΠΊΠΎΠ³Π΄Π° ΠΊΠ»Π΅ΠΉ ΠΏΠΎΠ΄ΡΠΎΡ , ΠΌΠΎΠΆΠ½ΠΎ ΡΠ±ΡΠ°ΡΡ Π²ΡΠΏΠΎΠΌΠΎΠ³Π°ΡΠ΅Π»ΡΠ½ΡΠ΅ ΡΠ»Π΅ΠΌΠ΅Π½ΡΡ, ΠΏΡΠΈΠ³ΠΎΡΠΎΠ²ΠΈΡΡ ΠΈ Π½Π°Π½Π΅ΡΡΠΈ Π·Π°ΡΠΈΡΠΊΡ;
- ΠΏΡΠΈ ΠΆΠ΅Π»Π°Π½ΠΈΠΈ Π½Π° ΠΊΠ°ΠΌΠ΅Π½Ρ ΠΌΠΎΠΆΠ½ΠΎ Π½Π°Π½Π΅ΡΡΠΈ Π·Π°ΡΠΈΡΠ½ΠΎΠ΅ ΡΡΠ΅Π΄ΡΡΠ²ΠΎ Π΄Π»Ρ ΠΏΡΠΎΠ΄Π»Π΅Π½ΠΈΡ Π΅Π³ΠΎ ΡΡΠΎΠΊΠ° ΡΠ»ΡΠΆΠ±Ρ.

β7. ΠΡΠ΄Π΅Π»ΠΊΠ° ΠΎΡΠΊΠΎΡΠΎΠ² ΠΌΠ΅ΡΠ°Π»Π»ΠΎΠΌ
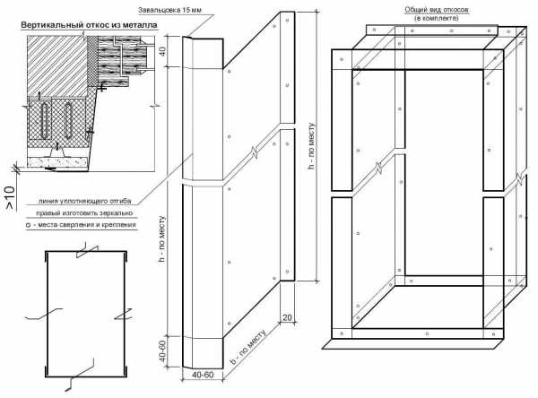
ΠΠ΅ΡΠ°Π»Π»ΠΈΡΠ΅ΡΠΊΠΈΠ΅ ΠΎΡΠΊΠΎΡΡ ΠΈΡΠΏΠΎΠ»ΡΠ·ΡΡΡΡΡ ΡΠΎΠ»ΡΠΊΠΎ ΠΏΡΠΈ Π½Π°ΡΡΠΆΠ½ΠΎΠΉ ΠΎΡΠ΄Π΅Π»ΠΊΠ΅, Π½Π°ΡΠ°Π»ΠΈ ΠΈΡ ΠΏΡΠΈΠΌΠ΅Π½ΡΡΡ Π΅ΡΠ΅ Π² ΡΠΎΠ²Π΅ΡΡΠΊΠΈΠ΅ Π²ΡΠ΅ΠΌΠ΅Π½Π°. ΠΡΠΎ ΠΎΠ΄ΠΈΠ½ ΠΈΠ· Π½Π°ΠΈΠ±ΠΎΠ»Π΅Π΅ ΡΠ΄Π°ΡΠ½ΡΡ ΡΠΏΠΎΡΠΎΠ±ΠΎΠ² Π·Π°ΡΠΈΡΠΈΡΡ ΠΎΡΠΊΠΎΡΡ Ρ Π²Π½Π΅ΡΠ½Π΅ΠΉ ΡΡΠΎΡΠΎΠ½Ρ. Π‘ΡΠ΅Π΄ΠΈ Π³Π»Π°Π²Π½ΡΡ ΠΏΡΠ΅ΠΈΠΌΡΡΠ΅ΡΡΠ² ΠΎΡΠΌΠ΅ΡΠΈΠΌ:
- ΡΡΡΠΎΠΉΡΠΈΠ²ΠΎΡΡΡ ΠΊ Π²Π»Π°Π³Π΅, ΠΏΠ΅ΡΠ΅ΠΌΠ΅Π½Π΅ ΡΠ΅ΠΌΠΏΠ΅ΡΠ°ΡΡΡ, ΠΌΠΈΠΊΡΠΎΠΎΡΠ³Π°Π½ΠΈΠ·ΠΌΠ°ΠΌ, ΡΠΎΠ»Π½Π΅ΡΠ½ΡΠΌ Π»ΡΡΠ°ΠΌ;
- ΠΌΠ΅ΡΠ°Π»Π» Π½Π΅ ΡΡΠ΅ΡΠΊΠ°Π΅ΡΡΡ, ΠΊΠ°ΠΊ ΡΡΡΠΊΠ°ΡΡΡΠΊΠ°, Π½Π΅ Π½ΡΠΆΠ΄Π°Π΅ΡΡΡ Π² ΡΠ΅Π³ΡΠ»ΡΡΠ½ΠΎΠΌ ΠΎΠ±Π½ΠΎΠ²Π»Π΅Π½ΠΈΠΈ ΠΏΠΎΠΊΡΡΡΠΈΡ;
- ΠΌΠ΅ΡΠ°Π»Π» ΠΎΡΠ»ΠΈΡΠ½ΠΎ ΠΏΠ΅ΡΠ΅Π½ΠΎΡΠΈΡ Π½ΠΈΠ·ΠΊΠΈΠ΅ ΡΠ΅ΠΌΠΏΠ΅ΡΠ°ΡΡΡΡ, Π² ΠΎΡΠ»ΠΈΡΠΈΠ΅ ΠΎΡ ΠΏΠ»Π°ΡΡΠΈΠΊΠ°;
- ΠΌΠ΅ΡΠ°Π»Π» Ρ ΠΏΠΎΠ»ΠΈΠΌΠ΅ΡΠ½ΡΠΌ ΠΎΡΠΊΡΡΡΠΈΠ΅ΠΌ ΠΎΠ±Π»Π°Π΄Π°Π΅Ρ ΠΎΠ³ΡΠΎΠΌΠ½ΠΎΠΉ Π΄ΠΎΠ»Π³ΠΎΠ²Π΅ΡΠ½ΠΎΡΡΡΡ, Π½Π΅ ΡΠΆΠ°Π²Π΅Π΅Ρ, ΡΠΎΡ ΡΠ°Π½ΡΠ΅Ρ ΡΠΎΡΠΌΡ ΠΈ ΡΠ²Π΅Ρ, Π·Π°ΡΠΈΡΠ°Π΅Ρ ΠΎΠΊΠ½Π° ΠΎΡ ΠΏΡΠΎΠ΄ΡΠ²Π°Π½ΠΈΡ;
- ΡΠ²Π΅Ρ ΠΌΠ΅ΡΠ°Π»Π»Π° ΠΌΠΎΠΆΠ΅Ρ Π±ΡΡΡ Π»ΡΠ±ΡΠΌ, ΡΠ°ΠΊ ΡΡΠΎ ΠΎΡΠ΄Π΅Π»ΠΊΡ ΠΌΠΎΠΆΠ½ΠΎ Π±ΡΠ΄Π΅Ρ ΡΠ΄Π°ΡΠ½ΠΎ ΡΠΎΡΠ΅ΡΠ°ΡΡ Ρ Π»ΡΠ±ΡΠΌ ΡΠ°ΡΠ°Π΄Π½ΡΠΌ ΠΌΠ°ΡΠ΅ΡΠΈΠ°Π»ΠΎΠΌ;
ΠΠ»Π°Π²Π½ΡΠΉ ΠΌΠΈΠ½ΡΡ β ΡΡΠΎ ΡΠΎΠ»ΡΠΊΠΎ Π²ΡΡΠΎΠΊΠ°Ρ ΡΡΠΎΠΈΠΌΠΎΡΡΡ, Π·Π°ΡΠΎ ΠΊΠ°ΠΆΠ΄ΡΠΉ Π³ΠΎΠ΄ Π²Ρ Π½Π΅ Π±ΡΠ΄Π΅ΡΠ΅ Π±Π΅Π»ΠΈΡΡ, ΠΏΠΎΠ΄ΠΊΡΠ°ΡΠΈΠ²Π°ΡΡ ΠΎΡΠΊΠΎΡΡ ΠΈΠ»ΠΈ Π·Π°Π΄Π΅Π»ΡΠ²Π°ΡΡ ΡΡΠ΅ΡΠΈΠ½Ρ Π½Π° ΡΡΡΠΊΠ°ΡΡΡΠΊΠ΅. Π‘ΡΠ°Π²ΠΈΡΡ ΡΠ°ΠΊΠΈΠ΅ ΠΎΡΠΊΠΎΡΡ Π»ΡΡΡΠ΅ Π²ΡΠ΅Π³ΠΎ ΡΡΠ°Π·Ρ ΠΆΠ΅ ΠΏΠΎΡΠ»Π΅ Π·Π°Π²Π΅ΡΡΠ΅Π½ΠΈΡ ΠΌΠΎΠ½ΡΠ°ΠΆΠ° ΠΎΠΊΠ½Π°.

β8. ΠΡΡΠ³ΠΈΠ΅ ΠΌΠ°ΡΠ΅ΡΠΈΠ°Π»Ρ Π΄Π»Ρ ΠΎΡΠ΄Π΅Π»ΠΊΠΈ ΠΎΡΠΊΠΎΡΠΎΠ²
Π’Π°ΠΊΠΆΠ΅ Π΄Π»Ρ ΠΎΡΠ΄Π΅Π»ΠΊΠΈ Π²Π½ΡΡΡΠ΅Π½Π½ΠΈΡ ΠΎΡΠΊΠΎΡΠΎΠ² ΠΌΠΎΠ³ΡΡ ΠΈΡΠΏΠΎΠ»ΡΠ·ΠΎΠ²Π°ΡΡΡΡ:
- Π΄Π΅ΡΠ΅Π²ΡΠ½Π½ΡΠ΅ ΠΏΠ°Π½Π΅Π»ΠΈ, ΠΊΠΎΡΠΎΡΡΠ΅ ΠΎΡΠ»ΠΈΡΠ½ΠΎ ΡΠΌΠΎΡΡΡΡΡΡ Π²ΠΌΠ΅ΡΡΠ΅ Ρ Π΄Π΅ΡΠ΅Π²ΡΠ½Π½ΡΠΌΠΈ ΠΎΠΊΠ½Π°ΠΌΠΈ. Π‘ΠΌΠΎΡΡΡΡΡΡ ΡΠ°ΠΊΠΈΠ΅ ΠΎΡΠΊΠΎΡΡ ΡΠΈΠΊΠ°ΡΠ½ΠΎ, Π½ΠΎ ΡΡΠ΅Π±ΡΡΡ ΡΠ΅Π³ΡΠ»ΡΡΠ½ΠΎΠ³ΠΎ ΡΡ
ΠΎΠ΄Π°, ΡΠ°ΠΊ ΠΊΠ°ΠΊ Π±ΠΎΡΡΡΡ ΠΈ ΠΏΠ΅ΡΠ΅ΠΏΠ°Π΄ΠΎΠ² ΡΠ΅ΠΌΠΏΠ΅ΡΠ°ΡΡΡ, ΠΈ Π²Π»Π°ΠΆΠ½ΠΎΡΡΠΈ ΠΎΡ ΠΊΠΎΠ½Π΄Π΅Π½ΡΠ°ΡΠ°, ΡΡΠΎ Π΄Π»Ρ Π΄Π°Π½Π½ΠΎΠΉ Π·ΠΎΠ½Ρ Π½Π΅ ΡΠ΅Π΄ΠΊΠΎΡΡΡ;

- ΠΎΠ±ΠΎΠΈ ΠΊΠ»Π΅ΡΡΡΡ Π½Π° Π²ΡΡΠΎΠ²Π½Π΅Π½Π½ΡΡ ΠΎΡΡΡΠΊΠ°ΡΡΡΠ΅Π½Π½ΡΡ ΠΏΠΎΠ²Π΅ΡΡ
Π½ΠΎΡΡΡ, ΠΈΡΠΏΠΎΠ»ΡΠ·ΡΡΡΡΡ Π² ΡΠ΅Ρ
ΡΠ»ΡΡΠ°ΡΡ
, ΠΊΠΎΠ³Π΄Π° ΡΡΠ΅Π½Ρ ΡΠ°ΠΊΠΆΠ΅ ΠΎΡΠ΄Π΅Π»Π°Π½Ρ ΠΎΠ±ΠΎΡΠΌΠΈ. ΠΠ°ΡΠΈΠ°Π½Ρ Π½Π΅ΠΏΠ»ΠΎΡ
ΠΎΠΉ, Π΄Π΅ΡΠ΅Π²ΡΠΉ, Π° Π²Π½ΡΡΡΠ΅Π½Π½ΠΈΠ΅ ΠΈ Π½Π°ΡΡΠΆΠ½ΡΠ΅ ΡΠ³Π»Ρ Π»ΡΡΡΠ΅ ΠΏΡΠΈΠΊΡΡΡΡ Π΄Π΅ΠΊΠΎΡΠ°ΡΠΈΠ²Π½ΡΠΌ ΡΠ³ΠΎΠ»ΠΊΠΎΠΌ. ΠΠ° ΡΠΎΠ»Π½Π΅ΡΠ½ΠΎΠΉ ΡΡΠΎΡΠΎΠ½Π΅ ΠΎΠ±ΠΎΠΈ ΠΌΠΎΠ³ΡΡ Π²ΡΡΠ²Π΅ΡΠ°ΡΡ, ΡΠ°ΠΊ ΡΡΠΎ Π²ΡΠ±ΠΈΡΠ°ΠΉΡΠ΅ Π±ΠΎΠ»Π΅Π΅ ΡΠ²Π΅ΡΠ»ΡΠ΅ ΠΈ ΠΎΠ΄Π½ΠΎΡΠΎΠ½Π½ΡΠ΅ ΠΎΡΡΠ΅Π½ΠΊΠΈ, ΠΈΠ»ΠΈ ΠΈΡΠΏΠΎΠ»ΡΠ·ΡΠΉΡΠ΅ ΠΏΠΎΠ΄ΠΎΠ±Π½ΡΡ ΠΎΡΠ΄Π΅Π»ΠΊΡ Π½Π° ΡΠ΅Π²Π΅ΡΠ½ΠΎΠΉ ΡΡΠΎΡΠΎΠ½Π΅;

- ΠΊΠ΅ΡΠ°ΠΌΠΈΡΠ΅ΡΠΊΠ°Ρ ΠΏΠ»ΠΈΡΠΊΠ° ΠΈΡΠΏΠΎΠ»ΡΠ·ΡΠ΅ΡΡΡ, ΠΊΠ°ΠΊ ΠΏΡΠ°Π²ΠΈΠ»ΠΎ, Π½Π° ΠΊΡΡ
Π½ΡΡ
ΠΈ Π² Π²Π°Π½Π½ΡΡ
, ΠΏΠΎΠ·Π²ΠΎΠ»ΡΠ΅Ρ ΡΠΎΠ·Π΄Π°ΡΡ Π³Π°ΡΠΌΠΎΠ½ΠΈΡΠ½ΡΡ ΠΏΠΎΠ²Π΅ΡΡ
Π½ΠΎΡΡΡ. ΠΠ»ΠΈΡΠΊΠ° Ρ
ΠΎΡΠΎΡΠΎ ΠΏΠ΅ΡΠ΅Π½ΠΎΡΠΈΡ ΠΏΠ΅ΡΠ΅ΠΏΠ°Π΄Ρ ΡΠ΅ΠΌΠΏΠ΅ΡΠ°ΡΡΡ, Π²Π»Π°ΠΆΠ½ΠΎΡΡΡ, Π²ΠΎΠ·Π΄Π΅ΠΉΡΡΠ²ΠΈΠ΅ ΡΠΎΠ»Π½Π΅ΡΠ½ΡΡ
Π»ΡΡΠ΅ΠΉ, Π½ΠΎ ΡΡΡΠ΄Π½ΠΎΡΡΠΈ ΠΌΠΎΠ³ΡΡ Π²ΠΎΠ·Π½ΠΈΠΊΠ½ΡΡΡ Π² ΠΏΠΎΠ΄Π³ΠΎΠ½ΠΊΠ΅ β ΠΌΠ½ΠΎΠ³ΠΈΠ΅ ΡΠ»Π΅ΠΌΠ΅Π½ΡΡ ΠΏΡΠΈΠ΄Π΅ΡΡΡ ΠΏΠΎΠ΄ΡΠ΅Π·Π°ΡΡ. Π ΡΡΠΎΠΌ ΠΏΠ»Π°Π½Π΅ ΠΊΡΠ΄Π° Π»ΡΡΡΠ΅ ΠΏΠΎΠΊΠ°Π·ΡΠ²Π°Π΅Ρ ΡΠ΅Π±Ρ ΠΌΠΎΠ·Π°ΠΈΠΊΠ°.

ΠΠ΅ Π·Π°Π±ΡΠ²Π°ΠΉΡΠ΅, ΡΡΠΎ ΠΎΡΠΊΠΎΡΡ Π΄ΠΎΠ»ΠΆΠ½Ρ Π³Π°ΡΠΌΠΎΠ½ΠΈΡΠ½ΠΎ ΡΠΎΡΠ΅ΡΠ°ΡΡΡΡ Π½Π΅ ΡΠΎΠ»ΡΠΊΠΎ ΡΠΎ ΡΡΠ΅Π½Π°ΠΌΠΈ ΠΈ ΡΠ°ΠΌΠΎΠΉ, Π½ΠΎ ΠΈ Ρ ΠΏΠΎΠ΄ΠΎΠΊΠΎΠ½Π½ΠΈΠΊΠΎΠΌ.
remstroiblog.ru
ΠΠ΅ΡΠ°Π»Π»ΠΈΡΠ΅ΡΠΊΠ°Ρ ΠΎΡΠ΄Π΅Π»ΠΊΠ° ΠΎΡΠΊΠΎΡΠΎΠ² ΠΎΠΊΠΎΠ½: ΡΡ Π΅ΠΌΡ ΠΈ ΠΏΠΎΡΠ°Π³ΠΎΠ²Π°Ρ ΠΈΠ½ΡΡΡΡΠΊΡΠΈΡ
ΠΠ΅ΡΠ°Π»Π»ΠΎΠΏΠ»Π°ΡΡΠΈΠΊΠΎΠ²ΡΠ΅ ΠΎΠΊΠ½Π° ΡΠ²Π»ΡΡΡΡΡ ΠΌΠ½ΠΎΠ³ΠΎΡΡΠ½ΠΊΡΠΈΠΎΠ½Π°Π»ΡΠ½ΡΠΌ ΡΠΎΠ²ΡΠ΅ΠΌΠ΅Π½Π½ΡΠΌ ΠΈΠ·Π΄Π΅Π»ΠΈΠ΅ΠΌ Π΄Π»Ρ ΠΎΡΡΠ΅ΠΊΠ»Π΅Π½ΠΈΡ ΠΎΠΊΠΎΠ½Π½ΡΡ ΠΏΡΠΎΠ΅ΠΌΠΎΠ². ΠΠ°Π²Π΅ΡΡΠ°ΡΡΠΈΠΌ ΡΡΠ°ΠΏΠΎΠΌ ΡΡΡΠ°Π½ΠΎΠ²ΠΊΠΈ ΠΏΠ»Π°ΡΡΠΈΠΊΠΎΠ²ΡΡ ΠΎΠΊΠΎΠ½ ΡΠ²Π»ΡΠ΅ΡΡΡ ΠΎΡΠ΄Π΅Π»ΠΊΠ° Π½Π°ΡΡΠΆΠ½ΡΡ ΠΎΡΠΊΠΎΡΠΎΠ². ΠΠ»Ρ ΡΡΠΎΠ³ΠΎ ΠΌΠΎΠ³ΡΡ ΠΏΡΠΈΠΌΠ΅Π½ΡΡΡΡΡ ΡΠ°Π·Π»ΠΈΡΠ½ΡΠ΅ ΠΎΡΠ΄Π΅Π»ΠΎΡΠ½ΡΠ΅ ΠΌΠ°ΡΠ΅ΡΠΈΠ°Π»Ρ: ΡΡΡΠΊΠ°ΡΡΡΠΊΠ°, ΠΊΡΠ°ΡΠΊΠ°, ΠΠΠ₯-ΠΏΠ°Π½Π΅Π»ΠΈ, Π³ΠΈΠΏΡΠΎΠΊΠ°ΡΡΠΎΠ½, Π½ΠΎ ΡΠ°ΡΠ΅ Π²ΡΠ΅Π³ΠΎ ΠΏΡΠΎΠΈΠ·Π²ΠΎΠ΄ΠΈΡΡΡ ΠΌΠ΅ΡΠ°Π»Π»ΠΈΡΠ΅ΡΠΊΠ°Ρ ΠΎΡΠ΄Π΅Π»ΠΊΠ° ΠΎΠΊΠΎΠ½. Π£ΡΡΠ°Π½ΠΎΠ²ΠΊΠ° ΠΌΠ΅ΡΠ°Π»Π»ΠΈΡΠ΅ΡΠΊΠΎΠ³ΠΎ ΠΎΡΠΊΠΎΡΠ° Π½Π° ΠΎΠΊΠ½Π° ΠΌΠΎΠΆΠ΅Ρ Π±ΡΡΡ Π²ΡΠΏΠΎΠ»Π½Π΅Π½Π° ΡΠ²ΠΎΠΈΠΌΠΈ ΡΡΠΊΠ°ΠΌΠΈ.
Π€ΡΠ½ΠΊΡΠΈΡ ΠΎΡΠΊΠΎΡΠΎΠ²
ΠΡΠ΄Π΅Π»ΠΊΠ° ΠΎΠΊΠΎΠ½ ΡΠ½Π°ΡΡΠΆΠΈ ΠΎΡΠΊΠΎΡΠ°ΠΌΠΈ ΠΈΠ· ΠΌΠ΅ΡΠ°Π»Π»Π° Π²ΡΠΏΠΎΠ»Π½ΡΠ΅Ρ Π΄Π΅ΠΊΠΎΡΠ°ΡΠΈΠ²Π½ΡΡ ΠΈ Π·Π°ΡΠΈΡΠ½ΡΡ ΡΡΠ½ΠΊΡΠΈΠΈ. Π£ΡΡΠ°Π½Π°Π²Π»ΠΈΠ²Π°Ρ ΠΎΡΠΊΠΎΡΡ Π½Π° ΠΎΠΊΠ½Π° ΡΠ²ΠΎΠΈΠΌΠΈ ΡΡΠΊΠ°ΠΌΠΈ, ΠΌΠΎΠΆΠ½ΠΎ Π·Π°ΠΊΡΡΡΡ ΠΌΠΎΠ½ΡΠ°ΠΆΠ½ΡΠΉ ΡΠΎΠ² ΠΈ ΡΠ΅ΠΌ ΡΠ°ΠΌΡΠΌ Π·Π°ΡΠΈΡΠΈΡΡ Π΅Π³ΠΎ ΠΎΡ Π²ΠΎΠ·Π΄Π΅ΠΉΡΡΠ²ΠΈΡ Π°ΡΠΌΠΎΡΡΠ΅ΡΠ½ΡΡ ΠΎΡΠ°Π΄ΠΊΠΎΠ² ΠΈ ΠΏΡΡΠΌΡΡ ΡΠΎΠ»Π½Π΅ΡΠ½ΡΡ Π»ΡΡΠ΅ΠΉ.
ΠΡΠΊΠΎΡΡ ΠΈΠ· ΠΌΠ΅ΡΠ°Π»Π»Π° Π²ΡΠΏΠΎΠ»Π½ΡΡΡ Π·Π°ΡΠΈΡΠ½ΡΡ ΠΈ Π΄Π΅ΠΊΠΎΡΠ°ΡΠΈΠ²Π½ΡΡ ΡΠΎΠ»ΡΠΠΎΠ½ΡΠ°ΠΆΠ½Π°Ρ ΠΏΠ΅Π½Π°, ΠΏΡΠΈΠΌΠ΅Π½ΡΠ΅ΠΌΠ°Ρ Π΄Π»Ρ Π·Π°Π΄Π΅Π»ΠΊΠΈ ΡΡΡΠΊΠ° ΠΌΠ΅ΠΆΠ΄Ρ ΡΠ°ΠΌΠΎΠΉ ΠΈ ΠΎΠΊΠΎΠ½Π½ΡΠΌ ΠΏΡΠΎΠ΅ΠΌΠΎΠΌ, ΡΠ²Π»ΡΠ΅ΡΡΡ ΠΏΠΎΡΠΈΡΡΡΠΌ ΠΏΠ°ΡΠΎΠΏΡΠΎΠ½ΠΈΡΠ°Π΅ΠΌΡΠΌ Π²Π΅ΡΠ΅ΡΡΠ²ΠΎΠΌ, ΠΊΠΎΡΠΎΡΠΎΠ΅ ΠΏΡΠΎΠΏΡΡΠΊΠ°Π΅Ρ ΡΠΊΠ²ΠΎΠ·Ρ ΡΠ΅Π±Ρ Π²Π»Π°Π³Ρ ΠΈΠ· ΠΏΠΎΠΌΠ΅ΡΠ΅Π½ΠΈΡ. Π ΡΠ΅Π·ΡΠ»ΡΡΠ°ΡΠ΅ ΡΡΠΎΠ³ΠΎ Π²Π»Π°Π³Π° ΠΈ ΠΊΠΎΠ½Π΄Π΅Π½ΡΠ°Ρ ΠΎΡΠ΅Π΄Π°ΡΡ Π½Π° ΠΏΠΎΠ²Π΅ΡΡ Π½ΠΎΡΡΠΈ ΠΎΡΠΊΠΎΡΠΎΠ² ΠΎΠΊΠΎΠ½, ΡΡΠΎ ΠΏΡΠΈΠ²ΠΎΠ΄ΠΈΡ ΠΊ ΠΎΠ±ΡΠ°Π·ΠΎΠ²Π°Π½ΠΈΡ ΠΏΠ»Π΅ΡΠ΅Π½ΠΈ ΠΈ ΡΠ°Π·ΡΡΡΠ΅Π½ΠΈΡ ΡΠ΅Π»ΠΎΡΡΠ½ΠΎΡΡΠΈ ΠΊΠΎΠ½ΡΡΡΡΠΊΡΠΈΠΈ. ΠΠ»Π°Π³Π° Ρ ΡΠ»ΠΈΡΡ ΠΌΠΎΠΆΠ΅Ρ ΠΏΡΠΎΠ½ΠΈΠΊΠ°ΡΡ ΡΠ΅ΡΠ΅Π· ΠΌΠΎΠ½ΡΠ°ΠΆΠ½ΡΠΉ ΡΠΎΠ² ΠΈ Π²ΡΠ·ΡΠ²Π°ΡΡ Π·Π°ΠΏΠΎΡΠ΅Π²Π°Π½ΠΈΠ΅ ΠΈ ΠΏΡΠΎΠΌΠ΅ΡΠ·Π°Π½ΠΈΠ΅ ΠΎΠΊΠ½Π° Π² Π·ΠΈΠΌΠ½ΠΈΠΉ ΠΏΠ΅ΡΠΈΠΎΠ΄.
Π£ΡΡΠ°Π½Π°Π²Π»ΠΈΠ²Π°Ρ ΠΌΠ΅ΡΠ°Π»Π»ΠΈΡΠ΅ΡΠΊΠΈΠ΅ ΠΎΡΠΊΠΎΡΡ Π½Π° ΠΎΠΊΠ½Π°, ΠΌΠΎΠΆΠ½ΠΎ Π½Π΅ ΠΏΠ΅ΡΠ΅ΠΆΠΈΠ²Π°ΡΡ ΠΎΠ± ΡΡΠΈΡ Π½Π΅ΠΏΡΠΈΡΡΠ½ΠΎΡΡΡΡ , ΡΠ°ΠΊ ΠΊΠ°ΠΊ ΠΌΠ΅ΡΠ°Π»Π» β ΡΡΠΎ ΠΏΡΠΎΡΠ½ΡΠΉ, Π΄ΠΎΠ»Π³ΠΎΠ²Π΅ΡΠ½ΡΠΉ ΠΈ Π½Π΅ΠΏΡΠΈΡ ΠΎΡΠ»ΠΈΠ²ΡΠΉ Π² ΡΡ ΠΎΠ΄Π΅ ΠΌΠ°ΡΠ΅ΡΠΈΠ°Π» Ρ Π²ΡΡΠΎΠΊΠΈΠΌΠΈ ΡΠΊΡΠΏΠ»ΡΠ°ΡΠ°ΡΠΈΠΎΠ½Π½ΡΠΌΠΈ ΠΏΠΎΠΊΠ°Π·Π°ΡΠ΅Π»ΡΠΌΠΈ.
ΠΠ°Π·Π½Π°ΡΠ΅Π½ΠΈΠ΅
ΠΠ΅ΡΠ°Π»Π»ΠΈΡΠ΅ΡΠΊΠΈΠ΅ Π½Π°ΡΡΠΆΠ½ΡΠ΅ ΠΎΡΠΊΠΎΡΡ Π²ΡΠΏΠΎΠ»Π½ΡΡΡ Π½Π΅ΡΠΊΠΎΠ»ΡΠΊΠΎ Π²Π°ΠΆΠ½ΡΡ ΡΡΠ½ΠΊΡΠΈΠΉ:
- ΠΠ΅Π»Π΅Π·Π½ΡΠΉ Π½Π°Π»ΠΈΡΠ½ΠΈΠΊ Π΄Π»Ρ ΠΎΠΊΠΎΠ½ ΠΏΡΠΈΠ΄Π°Π΅Ρ Π²Π½Π΅ΡΠ½Π΅ΠΌΡ ΠΎΠ±Π»ΠΈΠΊΡ ΠΏΡΠΎΠ΅ΠΌΠ° ΠΏΡΠΈΠ²Π»Π΅ΠΊΠ°ΡΠ΅Π»ΡΠ½ΡΠΉ ΠΎΠΏΡΡΡΠ½ΡΠΉ Π²Π½Π΅ΡΠ½ΠΈΠΉ Π²ΠΈΠ΄. Π‘ΡΠ°Π»ΡΠ½ΠΎΠΉ ΠΎΡΠΊΠΎΡ ΡΠ°ΡΠ΅ Π²ΡΠΏΠΎΠ»Π½ΡΠ΅ΡΡΡ Π² ΡΠΎΠΌ ΠΆΠ΅ ΡΠ²Π΅ΡΠ΅, ΡΡΠΎ ΠΈ ΠΏΡΠΎΡΠΈΠ»Ρ ΠΎΠΊΠΎΠ½Π½ΠΎΠΉ ΠΊΠΎΠ½ΡΡΡΡΠΊΡΠΈΠΈ β Π±Π΅Π»ΡΠΉ ΠΈΠ»ΠΈ ΠΊΠΎΡΠΈΡΠ½Π΅Π²ΡΠΉ (Π΄Π»Ρ Π»Π°ΠΌΠΈΠ½ΠΈΡΠΎΠ²Π°Π½Π½ΡΡ
ΠΏΠΎΠ΄ Π΄Π΅ΡΠ΅Π²ΠΎ ΠΏΡΠΎΡΠΈΠ»Π΅ΠΉ). ΠΠ΄Π½Π°ΠΊΠΎ ΠΏΡΠΈ ΠΆΠ΅Π»Π°Π½ΠΈΠΈ Π·Π°ΠΊΠ°Π·ΡΠΈΠΊΠ° ΠΏΠ°Π½Π΅Π»ΠΈ ΠΌΠΎΠ³ΡΡ Π±ΡΡΡ ΠΎΠΊΡΠ°ΡΠ΅Π½Ρ Π² Π»ΡΠ±ΠΎΠΉ ΡΠ²Π΅Ρ ΠΏΠΎ ΠΊΠ°ΡΠ°Π»ΠΎΠ³Ρ RAL.
ΠΠ°ΠΊΠ°Π·ΡΠΈΠΊ ΠΌΠΎΠΆΠ΅Ρ Π²ΡΠ±ΡΠ°ΡΡ Π»ΡΠ±ΠΎΠΉ ΡΠ²Π΅Ρ ΠΎΡΠΊΠΎΡΠΎΠ² ΠΈΠ· ΠΊΠ°ΡΠ°Π»ΠΎΠ³Π° RAL - Β ΠΠ°ΡΠΈΡΠ° ΠΌΠΎΠ½ΡΠ°ΠΆΠ½ΠΎΠ³ΠΎ ΡΠ²Π° ΠΎΡ Π²Π»Π°Π³ΠΈ ΠΈ Π²ΠΎΠ·Π΄Π΅ΠΉΡΡΠ²ΠΈΡ ΠΏΡΠΈΡΠΎΠ΄Π½ΡΡ ΡΠ²Π»Π΅Π½ΠΈΠΉ Π² Π²ΠΈΠ΄Π΅ Π°ΡΠΌΠΎΡΡΠ΅ΡΠ½ΡΡ ΠΎΡΠ°Π΄ΠΊΠΎΠ², Π²Π΅ΡΡΠ° ΠΈ ΠΏΠ΅ΡΠ΅ΠΏΠ°Π΄ΠΎΠ² ΡΠ΅ΠΌΠΏΠ΅ΡΠ°ΡΡΡ.
- ΠΠ°ΡΠΈΡΠ° ΠΏΠΎΠ²Π΅ΡΡ Π½ΠΎΡΡΠΈ ΠΎΡΠΊΠΎΡΠ° ΠΎΡ ΡΡΡΠΎΡΡΠΈ, ΠΎΠ±ΡΠ°Π·ΠΎΠ²Π°Π½ΠΈΡ ΠΏΠ»Π΅ΡΠ΅Π½ΠΈ ΠΈ ΡΠ°Π·ΡΡΡΠ΅Π½ΠΈΡ. ΠΠ°ΡΡΠΆΠ½ΡΠ΅ ΠΎΡΠΊΠΎΡΡ ΠΈΠ· ΠΌΠ΅ΡΠ°Π»Π»Π° Π½Π°Π΄Π΅ΠΆΠ½ΠΎ Π³Π΅ΡΠΌΠ΅ΡΠΈΠ·ΠΈΡΡΡΡ ΠΏΠΎΠ²Π΅ΡΡ Π½ΠΎΡΡΡ ΡΡΠ΅Π½Ρ ΠΈ ΠΏΠΎΠ²ΡΡΠ°ΡΡ Π΅Π΅ ΡΠ΅ΠΏΠ»ΠΎΠ·Π°ΡΠΈΡΠ½ΡΠ΅ ΠΊΠ°ΡΠ΅ΡΡΠ²Π°.
ΠΠ΅ΡΠ°Π»Π»ΠΈΡΠ΅ΡΠΊΠ°Ρ ΠΎΡΠ΄Π΅Π»ΠΊΠ° ΠΎΠΊΠΎΠ½ Π΄ΠΎΠ»ΠΆΠ½Π° ΡΡΡΠ°Π½Π°Π²Π»ΠΈΠ²Π°ΡΡΡΡ ΡΡΠ°Π·Ρ ΠΆΠ΅ ΠΏΠΎΡΠ»Π΅ ΠΌΠΎΠ½ΡΠ°ΠΆΠ° ΠΎΠΊΠΎΠ½, ΡΡΠΎΠ±Ρ ΠΈΡΠΊΠ»ΡΡΠΈΡΡ Π²ΠΏΠΈΡΡΠ²Π°Π½ΠΈΠ΅ Π²Π»Π°Π³ΠΈ ΠΌΠΎΠ½ΡΠ°ΠΆΠ½ΠΎΠΉ ΠΏΠ΅Π½ΠΎΠΉ. ΠΡΠ»ΠΈ ΡΡΠΎ Π½Π΅Π²ΠΎΠ·ΠΌΠΎΠΆΠ½ΠΎ ΠΏΡΠΎΠΈΠ·Π²Π΅ΡΡΠΈ Π² Π±Π»ΠΈΠΆΠ°ΠΉΡΠ΅Π΅ Π²ΡΠ΅ΠΌΡ ΠΈΠ·-Π·Π° ΡΠ°Π±ΠΎΡ ΠΏΠΎ ΠΎΡΠ΄Π΅Π»ΠΊΠ΅ ΡΠ°ΡΠ°Π΄Π°, ΡΠΎ ΠΌΠΎΠ½ΡΠ°ΠΆΠ½ΡΠ΅ ΡΠ²Ρ Π½Π° ΠΎΠΊΠ½Π°Ρ ΠΌΠΎΠΆΠ½ΠΎ Π²ΡΠ΅ΠΌΠ΅Π½Π½ΠΎ Π·Π°ΠΊΡΡΡΡ ΠΏΠΎΠ»ΠΈΡΡΠΈΠ»Π΅Π½ΠΎΠΌ.
ΠΡΠ΅ΠΈΠΌΡΡΠ΅ΡΡΠ²Π° ΠΏΠ΅ΡΠ΅Π΄ Π΄ΡΡΠ³ΠΈΠΌΠΈ ΠΌΠ°ΡΠ΅ΡΠΈΠ°Π»Π°ΠΌΠΈ
Π‘ΡΡΠ΅ΡΡΠ²ΡΠ΅Ρ Π½Π΅ΡΠΊΠΎΠ»ΡΠΊΠΎ Π²ΠΈΠ΄ΠΎΠ² ΠΎΡΠ΄Π΅Π»ΠΎΡΠ½ΡΡ ΠΌΠ°ΡΠ΅ΡΠΈΠ°Π»ΠΎΠ², ΠΈΡΠΏΠΎΠ»ΡΠ·ΡΡ ΠΊΠΎΡΠΎΡΡΠ΅, ΠΌΠΎΠΆΠ½ΠΎ ΠΏΡΠΈΠ΄Π°ΡΡ ΠΎΠΊΠΎΠ½Π½ΠΎΠΌΡ ΠΏΡΠΎΠ΅ΠΌΡ Π·Π°Π²Π΅ΡΡΠ΅Π½Π½ΡΠΉ Π²Π½Π΅ΡΠ½ΠΈΠΉ Π²ΠΈΠ΄. ΠΡΠΎ ΡΡΡΠΊΠ°ΡΡΡΠΊΠ°, Π³ΠΈΠΏΡΠΎΠΊΠ°ΡΡΠΎΠ½, ΠΏΠ»Π°ΡΡΠΈΠΊ ΠΈ ΠΊΡΠ°ΡΠΊΠ°. ΠΠΎ ΠΏΠΎ ΡΠ²ΠΎΠΈΠΌ ΡΠ΅Ρ Π½ΠΈΡΠ΅ΡΠΊΠΈΠΌ Ρ Π°ΡΠ°ΠΊΡΠ΅ΡΠΈΡΡΠΈΠΊΠ°ΠΌ Π½ΠΈ ΠΎΠ΄ΠΈΠ½ ΠΈΠ· ΡΡΠΈΡ ΠΌΠ°ΡΠ΅ΡΠΈΠ°Π»ΠΎΠ² Π½Π΅ ΠΌΠΎΠΆΠ΅Ρ ΡΡΠ°Π²Π½ΠΈΡΡΡΡ Ρ ΠΌΠ΅ΡΠ°Π»Π»ΠΈΡΠ΅ΡΠΊΠΈΠΌΠΈ ΠΎΡΠΊΠΎΡΠ°ΠΌΠΈ. Π Π΅ΡΠ°Ρ Π²ΠΎΠΏΡΠΎΡ, ΠΊΠ°ΠΊ ΡΠ΄Π΅Π»Π°ΡΡ ΠΎΡΠΊΠΎΡΡ, Π½Π°Π΄ΠΎ ΠΈΠ·ΡΡΠΈΡΡ Ρ Π°ΡΠ°ΠΊΡΠ΅ΡΠΈΡΡΠΈΠΊΠΈ ΠΎΡΠ΄Π΅Π»ΠΎΡΠ½ΡΡ ΠΌΠ°ΡΠ΅ΡΠΈΠ°Π»ΠΎΠ².
ΠΠΎΠ»ΠΈΠΌΠ΅ΡΠ½ΡΠΉ ΡΠ»ΠΎΠΉ ΡΡΠ°Π»ΡΠ½ΠΎΠ³ΠΎ ΠΎΡΠΊΠΎΡΠ° Π·Π°ΡΠΈΡΠ°Π΅Ρ ΠΈΠ·Π΄Π΅Π»ΠΈΠ΅ ΠΎΡ ΡΠΆΠ°Π²ΡΠΈΠ½ΡΠΡΠΈ ΠΈΡΠΏΠΎΠ»ΡΠ·ΠΎΠ²Π°Π½ΠΈΠΈ ΡΡΡΠΊΠ°ΡΡΡΠΊΠΈ Π½Π°Π΄ΠΎ Π±ΡΡΡ Π³ΠΎΡΠΎΠ²ΡΠΌ ΠΊ ΡΠΎΠΌΡ, ΡΡΠΎ ΡΠΎ Π²ΡΠ΅ΠΌΠ΅Π½Π΅ΠΌ ΡΡΡΠΊΠ°ΡΡΡΠ½ΡΠΉ ΡΠ»ΠΎΠΉ ΠΏΠΎΡΡΠ΅ΡΠΊΠ°Π΅ΡΡΡ. ΠΠΎΠΏΠ°Π΄Π°Π½ΠΈΠ΅ Π²Π»Π°Π³ΠΈ Π² ΠΎΠ±ΡΠ°Π·ΠΎΠ²Π°Π²ΡΠΈΠ΅ΡΡ ΡΠ΅Π»ΠΈ ΠΌΠ΅ΠΆΠ΄Ρ ΡΠ°ΠΌΠΎΠΉ ΠΎΠΊΠ½Π° ΠΈ ΡΡΡΠΊΠ°ΡΡΡΠ½ΡΠΌ ΡΠ»ΠΎΠ΅ΠΌ ΠΌΠΎΠΆΠ΅Ρ ΡΡΠ°ΡΡ ΠΏΡΠΈΡΠΈΠ½ΠΎΠΉ ΠΏΠΎΡΠ²Π»Π΅Π½ΠΈΡ ΠΏΠ»Π΅ΡΠ΅Π½ΠΈ.
ΠΠΈΠΏΡΠΎΠΊΠ°ΡΡΠΎΠ½ Π² ΠΊΠ°ΡΠ΅ΡΡΠ²Π΅ ΠΎΡΠ΄Π΅Π»ΠΎΡΠ½ΠΎΠ³ΠΎ ΠΌΠ°ΡΠ΅ΡΠΈΠ°Π»Π° Π΄Π»Ρ ΠΎΡΠΊΠΎΡΠΎΠ² Π³ΠΎΠ΄ΠΈΡΡΡ ΡΠΎΠ»ΡΠΊΠΎ Π΄Π»Ρ Π²Π½ΡΡΡΠ΅Π½Π½ΠΈΡ ΡΠ°Π±ΠΎΡ. ΠΠ°ΠΆΠ΅ Π³ΠΈΠΏΡΠΎΠΊΠ°ΡΡΠΎΠ½ ΠΌΠ°ΡΠΊΠΈ ΠΠΠΠ Π½Π΅ ΡΠΏΠΎΡΠΎΠ±Π΅Π½ ΠΏΡΠΎΡΠΈΠ²ΠΎΡΡΠΎΡΡΡ ΠΏΡΡΠΌΠΎΠΌΡ Π²ΠΎΠ·Π΄Π΅ΠΉΡΡΠ²ΠΈΡ Π°ΡΠΌΠΎΡΡΠ΅ΡΠ½ΡΡ ΠΎΡΠ°Π΄ΠΊΠΎΠ². ΠΠ° ΠΊΠΎΡΠΎΡΠΊΠΈΠΉ ΡΡΠΎΠΊ ΠΎΠ½ ΡΠ°Π·Π±ΡΡ Π½Π΅Ρ, ΠΏΠΎΡΠ΅ΡΡΠ΅Ρ ΡΠ²ΠΎΠΉ Π²Π½Π΅ΡΠ½ΠΈΠΉ Π²ΠΈΠ΄ ΠΈ ΡΠ°Π·ΡΡΡΠΈΡΡΡ.
ΠΡΠΈΠΌΠ΅Π½Π΅Π½ΠΈΠ΅ ΠΏΠ»Π°ΡΡΠΈΠΊΠΎΠ²ΡΡ ΠΏΠ°Π½Π΅Π»Π΅ΠΉ Π΄Π»Ρ ΠΎΡΠ΄Π΅Π»ΠΊΠΈ Π½Π°ΡΡΠΆΠ½ΡΡ ΠΎΡΠΊΠΎΡΠΎΠ² ΠΏΡΠΈΠ²ΠΎΠ΄ΠΈΡ ΠΊ ΡΠΎΠΌΡ, ΡΡΠΎ Π½Π° ΡΠΎΠ»Π½ΡΠ΅ ΠΏΠ»Π°ΡΡΠΈΠΊ Π²ΡΠ³ΠΎΡΠ°Π΅Ρ ΠΈ ΠΏΡΠΈΠΎΠ±ΡΠ΅ΡΠ°Π΅Ρ Π½Π΅ΠΏΡΠΈΡΡΠ½ΡΠΉ ΠΆΠ΅Π»ΡΠΎΠ²Π°ΡΡΠΉ ΠΎΡΡΠ΅Π½ΠΎΠΊ. Π ΠΏΡΠΈ ΡΠ΅Π·ΠΊΠΎΠΌ ΠΏΠΎΠ½ΠΈΠΆΠ΅Π½ΠΈΠΈ ΡΠ΅ΠΌΠΏΠ΅ΡΠ°ΡΡΡΡ Π²ΠΎΠ·Π΄ΡΡ Π° ΠΏΠ»Π°ΡΡΠΈΠΊ ΡΡΠ°Π½ΠΎΠ²ΠΈΡΡΡ Ρ ΡΡΠΏΠΊΠΈΠΌ ΠΈ ΠΌΠΎΠΆΠ΅Ρ ΠΏΠΎΡΠ΅ΡΡΡΡ ΡΠ²ΠΎΡ ΡΠ΅Π»ΠΎΡΡΠ½ΠΎΡΡΡ ΠΏΠΎΡΠ»Π΅ Π½Π΅Π·Π½Π°ΡΠΈΡΠ΅Π»ΡΠ½ΠΎΠ³ΠΎ ΠΌΠ΅Ρ Π°Π½ΠΈΡΠ΅ΡΠΊΠΎΠ³ΠΎ Π²ΠΎΠ·Π΄Π΅ΠΉΡΡΠ²ΠΈΡ. ΠΠΎΡΡΠΎΠΌΡ ΠΏΠ»Π°ΡΡΠΈΠΊ Π»ΡΡΡΠ΅ ΠΏΡΠΈΠΌΠ΅Π½ΡΡΡ Π΄Π»Ρ ΠΎΡΠ΄Π΅Π»ΠΊΠΈ Π²Π½ΡΡΡΠ΅Π½Π½ΠΈΡ ΠΎΡΠΊΠΎΡΠΎΠ², ΠΎΡΠΎΠ±Π΅Π½Π½ΠΎ Π² ΠΏΠΎΠΌΠ΅ΡΠ΅Π½ΠΈΠΈ ΠΊΡΡ Π½ΠΈ.
ΠΡΠΊΠΎΡΡ ΠΈΠ· ΠΌΠ΅ΡΠ°Π»Π»Π° Π½Π΅ ΠΏΠΎΠ΄Π²Π΅ΡΠΆΠ΅Π½Ρ Π²ΠΎΠ·Π΄Π΅ΠΉΡΡΠ²ΠΈΡΠΌ Π°ΡΠΌΠΎΡΡΠ΅ΡΠ½ΡΡ
ΡΠ²Π»Π΅Π½ΠΈΠΉΠΡΠ΅ΠΈΠΌΡΡΠ΅ΡΡΠ²Π° ΠΌΠ΅ΡΠ°Π»Π»ΠΈΡΠ΅ΡΠΊΠΈΡ ΠΎΡΠΊΠΎΡΠΎΠ² ΠΎΡΠ΅Π²ΠΈΠ΄Π½Ρ, ΡΠ°ΠΊ ΠΊΠ°ΠΊ ΠΌΠ°ΡΠ΅ΡΠΈΠ°Π»ΠΎΠΌ ΠΈΡ ΠΈΠ·Π³ΠΎΡΠΎΠ²Π»Π΅Π½ΠΈΡ ΡΠ²Π»ΡΠ΅ΡΡΡ ΠΎΡΠΈΠ½ΠΊΠΎΠ²Π°Π½Π½Π°Ρ ΡΡΠ°Π»Ρ, ΠΊΠΎΡΠΎΡΡΡ Π½Π° ΡΡΠ°ΠΏΠ΅ ΠΏΡΠΎΠΈΠ·Π²ΠΎΠ΄ΡΡΠ²Π° ΠΏΠΎΠΊΡΡΠ²Π°ΡΡ Π·Π°ΡΠΈΡΠ½ΡΠΌ ΠΏΠΎΠ»ΠΈΠΌΠ΅ΡΠ½ΡΠΌ Π΄Π΅ΠΊΠΎΡΠ°ΡΠΈΠ²Π½ΡΠΌ ΡΠ»ΠΎΠ΅ΠΌ. ΠΡΠΎ Π·Π°ΡΠΈΡΠ°Π΅Ρ ΠΈΠ·Π΄Π΅Π»ΠΈΡ ΠΎΡ ΠΏΠΎΡΠ²Π»Π΅Π½ΠΈΡ ΠΊΠΎΡΡΠΎΠ·ΠΈΠΈ ΠΈ ΡΠΆΠ°Π²ΡΠΈΠ½Ρ.
ΠΠ»ΡΡΡ ΠΈ ΠΌΠΈΠ½ΡΡΡ ΠΌΠ°ΡΠ΅ΡΠΈΠ°Π»Π°
ΠΠ΅ΡΠΌΠΎΡΡΡ Π½Π° ΡΠΎ ΡΡΠΎ Π½Π°ΡΡΠΆΠ½ΡΠ΅ ΠΌΠ΅ΡΠ°Π»Π»ΠΈΡΠ΅ΡΠΊΠΈΠ΅ ΠΎΡΠΊΠΎΡΡ ΡΡΠΎΡΡ Π΄ΠΎΡΠΎΠΆΠ΅ Π΄ΡΡΠ³ΠΈΡ Π²ΠΈΠ΄ΠΎΠ² ΠΎΡΠ΄Π΅Π»ΠΊΠΈ, ΠΈΡ ΠΏΠΎΠ»ΠΎΠΆΠΈΡΠ΅Π»ΡΠ½ΡΠ΅ ΠΊΠ°ΡΠ΅ΡΡΠ²Π° ΡΡΠΎΡ Π½Π΅Π΄ΠΎΡΡΠ°ΡΠΎΠΊ ΠΏΠΎΠΊΡΡΠ²Π°ΡΡ Ρ Π»ΠΈΡ Π²ΠΎΠΉ:
Π Π΅ΠΊΠΎΠΌΠ΅Π½Π΄ΡΠ΅ΡΡΡ Π²ΠΌΠ΅ΡΡΠ΅ Ρ ΠΎΡΠΊΠΎΡΠ°ΠΌΠΈ ΠΌΠΎΠ½ΡΠΈΡΠΎΠ²Π°ΡΡ ΡΡΠΌΠΎΠΏΠΎΠ³Π»ΠΎΡΠ°ΡΡΡΡ Π»Π΅Π½ΡΡΠΠ· ΠΌΠΈΠ½ΡΡΠΎΠ² ΠΌΠΎΠΆΠ½ΠΎ ΠΎΡΠΌΠ΅ΡΠΈΡΡ Π²ΡΡΠΎΠΊΡΡ ΡΡΠΎΠΈΠΌΠΎΡΡΡ ΠΈ Π½Π°Π»ΠΈΡΠΈΠ΅ Π·Π²ΡΠΊΠΎΠ²ΡΡ ΡΡΡΠ΅ΠΊΡΠΎΠ², Π²ΠΎΠ·Π½ΠΈΠΊΠ°ΡΡΠΈΡ ΠΎΡ ΠΏΠ°Π΄Π΅Π½ΠΈΡ ΠΊΠ°ΠΏΠ΅Π»Ρ ΠΈΠ»ΠΈ Π³ΡΠ°Π΄Π° Π½Π° ΠΈΡ ΠΏΠΎΠ²Π΅ΡΡ Π½ΠΎΡΡΡ. Π‘ ΡΡΠΈΠΌ ΠΌΠΎΠΆΠ½ΠΎ ΡΠΏΡΠ°Π²ΠΈΡΡΡΡ, Π΅ΡΠ»ΠΈ ΠΈΡΠΏΠΎΠ»ΡΠ·ΠΎΠ²Π°ΡΡ ΠΏΡΠΈ ΠΌΠΎΠ½ΡΠ°ΠΆΠ΅ ΠΌΠ΅ΡΠ°Π»Π»ΠΈΡΠ΅ΡΠΊΠΈΡ ΠΎΡΠΊΠΎΡΠΎΠ² ΡΠΏΠ΅ΡΠΈΠ°Π»ΡΠ½ΡΡ ΡΡΠΌΠΎΠΏΠΎΠ³Π»ΠΎΡΠ°ΡΡΡΡ ΡΠΏΠ»ΠΎΡΠ½ΠΈΡΠ΅Π»ΡΠ½ΡΡ Π»Π΅Π½ΡΡ.
ΠΡΠ΅ ΠΎΠ΄Π½ΠΈΠΌ ΠΌΠΈΠ½ΡΡΠΎΠΌ ΠΌΠ΅ΡΠ°Π»Π»ΠΈΡΠ΅ΡΠΊΠΎΠ³ΠΎ ΠΎΡΠΊΠΎΡΠ° ΡΠ²Π»ΡΠ΅ΡΡΡ Π½Π΅Π²ΠΎΠ·ΠΌΠΎΠΆΠ½ΠΎΡΡΡ Π΅Π³ΠΎ ΠΌΠΎΠ½ΡΠ°ΠΆΠ° Π² ΠΏΡΠΎΠ΅ΠΌΡ Π°ΡΠΎΡΠ½ΠΎΠΉ ΡΠΎΡΠΌΡ.
ΠΠΎΠ΄Π³ΠΎΡΠΎΠ²ΠΊΠ° ΠΊ ΡΡΡΠ°Π½ΠΎΠ²ΠΊΠ΅
Π£ΡΡΠ°Π½ΠΎΠ²ΠΊΠ° ΡΠΎΠ²ΡΠ΅ΠΌΠ΅Π½Π½ΡΡ ΠΌΠ΅ΡΠ°Π»Π»ΠΈΡΠ΅ΡΠΊΠΈΡ ΠΎΡΠΊΠΎΡΠΎΠ² Π½Π° ΠΎΠΊΠ½Π° ΡΠ²ΠΎΠΈΠΌΠΈ ΡΡΠΊΠ°ΠΌΠΈ ΠΏΠΎΡΡΠ΅Π±ΡΠ΅Ρ ΠΏΠΎΠ΄Π³ΠΎΡΠΎΠ²ΠΊΠΈ ΡΠΏΠ΅ΡΠΈΠ°Π»ΡΠ½ΡΡ ΠΌΠ°ΡΠ΅ΡΠΈΠ°Π»ΠΎΠ² ΠΈ ΠΈΠ½ΡΡΡΡΠΌΠ΅Π½ΡΠΎΠ² Π΄Π»Ρ ΠΏΡΠΎΠ²Π΅Π΄Π΅Π½ΠΈΡ Π΄Π°Π½Π½ΠΎΠ³ΠΎ ΡΠΈΠΏΠ° ΡΠ°Π±ΠΎΡ:
- ΠΌΠ΅ΡΠ°Π»Π»ΠΈΡΠ΅ΡΠΊΠΈΠ΅ Π»ΠΈΡΡΡ;
- ΡΡΠΎΠ²Π΅Π½Ρ;
- ΠΊΡΠ΅ΠΏΠ΅ΠΆΠΈ;
- ΠΌΠΎΠ½ΡΠ°ΠΆΠ½ΡΡ ΠΏΠ΅Π½Ρ ΠΈ ΡΠΈΠ»ΠΈΠΊΠΎΠ½ΠΎΠ²ΡΠΉ Π³Π΅ΡΠΌΠ΅ΡΠΈΠΊ;
- ΡΡΡΡΠΏΠΎΠ²Π΅ΡΡ ΠΈ Π±ΠΈΡΡ;
- ΠΌΠ°Π»ΡΡΠ½ΡΠΉ Π½ΠΎΠΆ;
- Π½ΠΎΠΆΠ½ΠΈΡΡ ΠΏΠΎ ΠΌΠ΅ΡΠ°Π»Π»Ρ;
- ΡΡΠ»Π΅ΡΠΊΡ.
ΠΠ·Π»ΠΈΡΠΊΠΈ ΠΌΠΎΠ½ΡΠ°ΠΆΠ½ΠΎΠΉ ΠΏΠ΅Π½Ρ Π½Π΅ΠΎΠ±Ρ
ΠΎΠ΄ΠΈΠΌΠΎ ΡΡΠ΅Π·Π°ΡΡΠΠΎΠ΄Π³ΠΎΡΠΎΠ²ΠΊΠ° ΠΏΠΎΠ²Π΅ΡΡ Π½ΠΎΡΡΠΈ ΡΠΎΡΡΠΎΠΈΡ Π² ΡΠΎΠΌ, ΡΡΠΎ Ρ Π½Π΅Π΅ ΡΠ΄Π°Π»ΡΠ΅ΡΡΡ ΡΡΡΠΎΠΈΡΠ΅Π»ΡΠ½Π°Ρ ΠΏΡΠ»Ρ ΠΈ Π·Π°Π³ΡΡΠ·Π½Π΅Π½ΠΈΡ. ΠΠ·Π»ΠΈΡΠΊΠΈ ΠΌΠΎΠ½ΡΠ°ΠΆΠ½ΠΎΠΉ ΠΏΠ΅Π½Ρ ΡΡΠ΅Π·Π°ΡΡΡΡ ΠΌΠ°Π»ΡΡΠ½ΡΠΌ Π½ΠΎΠΆΠΎΠΌ, Π° ΡΠ²Ρ ΠΈ ΡΡΡΠΊΠΈ ΠΎΠ±ΡΠ°Π±Π°ΡΡΠ²Π°ΡΡΡΡ ΠΏΡΠΈ ΠΏΠΎΠΌΠΎΡΠΈ ΡΠΈΠ»ΠΈΠΊΠΎΠ½ΠΎΠ²ΠΎΠ³ΠΎ Π³Π΅ΡΠΌΠ΅ΡΠΈΠΊΠ°. Π£ΡΡΠ°Π½ΠΎΠ²ΠΊΠ° ΠΌΠ΅ΡΠ°Π»Π»ΠΈΡΠ΅ΡΠΊΠΎΠ³ΠΎ ΠΎΡΠΊΠΎΡΠ° Π½Π° ΠΎΠΊΠ½Π° ΡΠ²ΠΎΠΈΠΌΠΈ ΡΡΠΊΠ°ΠΌΠΈ Π΄ΠΎΠ»ΠΆΠ½Π° ΠΏΡΠΎΠΈΠ·Π²ΠΎΠ΄ΠΈΡΡΡΡ ΠΏΠΎΡΠ»Π΅ Π²ΡΡΡΡ Π°Π½ΠΈΡ ΡΠ²ΠΎΠ².
ΠΠΎΡΠ»Π΅Π΄ΠΎΠ²Π°ΡΠ΅Π»ΡΠ½ΠΎΡΡΡ ΡΠ°Π±ΠΎΡ
Π£ΡΡΠ°Π½ΠΎΠ²ΠΊΠ° ΠΌΠ΅ΡΠ°Π»Π»ΠΈΡΠ΅ΡΠΊΠΈΡ ΠΎΡΠΊΠΎΡΠΎΠ² Π½Π° ΠΎΠΊΠ½Π° ΠΏΡΠ΅Π΄ΠΏΠΎΠ»Π°Π³Π°Π΅Ρ ΠΏΡΠΎΠ²Π΅Π΄Π΅Π½ΠΈΠ΅ Π·Π°ΠΌΠ΅ΡΠΎΡΠ½ΡΡ ΡΠ°Π±ΠΎΡ. Π¨ΠΈΡΠΈΠ½Π° ΠΈ Π²ΡΡΠΎΡΠ° ΠΈΠ·Π΄Π΅Π»ΠΈΡ Π±ΡΠ΄ΡΡ ΡΠΎΠΎΡΠ²Π΅ΡΡΡΠ²ΠΎΠ²Π°ΡΡ Π²Π½ΡΡΡΠ΅Π½Π½ΠΈΠΌ ΠΈ Π²Π½Π΅ΡΠ½ΠΈΠΌ ΠΏΠ°ΡΠ°ΠΌΠ΅ΡΡΠ°ΠΌ ΠΏΡΠΎΠ΅ΠΌΠ°. ΠΠ·Π³ΠΎΡΠΎΠ²Π»Π΅Π½ΠΈΠ΅ Π²Π΅ΡΡ Π½Π΅Π³ΠΎ, Π½ΠΈΠΆΠ½Π΅Π³ΠΎ ΠΈ Π±ΠΎΠΊΠΎΠ²ΡΡ ΠΌΠ΅ΡΠ°Π»Π»ΠΈΡΠ΅ΡΠΊΠΈΡ ΡΠ»Π΅ΠΌΠ΅Π½ΡΠΎΠ² ΠΏΡΠΎΠΈΠ·Π²ΠΎΠ΄ΠΈΡΡΡ ΠΏΡΡΠ΅ΠΌ Π²ΡΡΠ΅Π·Π°Π½ΠΈΡ ΠΈΡ ΠΈΠ· Π·Π°Π³ΠΎΡΠΎΠ²Π»Π΅Π½Π½ΠΎΠ³ΠΎ ΠΌΠ΅ΡΠ°Π»Π»ΠΈΡΠ΅ΡΠΊΠΎΠ³ΠΎ Π»ΠΈΡΡΠ° Π² ΡΠΎΠΎΡΠ²Π΅ΡΡΡΠ²ΠΈΠΈ Ρ ΠΏΠΎΠ»ΡΡΠ΅Π½Π½ΡΠΌΠΈ ΠΈΠ·ΠΌΠ΅ΡΠ΅Π½ΠΈΡΠΌΠΈ.
Π‘Ρ
Π΅ΠΌΠ° ΠΏΠΎΠ΄ΡΠ΅Π·ΠΊΠΈ ΠΌΠ΅ΡΠ°Π»Π»ΠΈΡΠ΅ΡΠΊΠΎΠ³ΠΎ ΠΎΡΠΊΠΎΡΠ°
Π‘Ρ
Π΅ΠΌΠ° ΠΏΠΎΠ΄ΡΠ΅Π·ΠΊΠΈ Π½ΠΈΠΆΠ½Π΅Π³ΠΎ ΠΌΠ΅ΡΠ°Π»Π»ΠΈΡΠ΅ΡΠΊΠΎΠ³ΠΎ ΠΎΡΠ»ΠΈΠ²Π°
Π‘Ρ
Π΅ΠΌΠ° ΠΏΠΎΠ΄ΡΠ΅Π·ΠΊΠΈ Π²Π΅ΡΡ
Π½Π΅Π³ΠΎ ΠΌΠ΅ΡΠ°Π»Π»ΠΈΡΠ΅ΡΠΊΠΎΠ³ΠΎ ΠΎΡΠ»ΠΈΠ²Π°ΠΠ° Π²ΡΠΎΡΠΎΠΌ ΡΡΠ°ΠΏΠ΅ ΡΠ°Π±ΠΎΡ ΠΏΡΠΎΠΈΡΡ ΠΎΠ΄ΠΈΡ ΡΡΡΠ°Π½ΠΎΠ²ΠΊΠ° ΠΎΡΠ»ΠΈΠ²Π°, Π³ΠΎΡΠΈΠ·ΠΎΠ½ΡΠ°Π»ΡΠ½ΠΎΠ΅ ΠΏΠΎΠ»ΠΎΠΆΠ΅Π½ΠΈΠ΅ ΠΊΠΎΡΠΎΡΠΎΠ³ΠΎ ΠΊΠΎΠ½ΡΡΠΎΠ»ΠΈΡΡΠ΅ΡΡΡ ΡΡΡΠΎΠΈΡΠ΅Π»ΡΠ½ΡΠΌ ΡΡΠΎΠ²Π½Π΅ΠΌ. ΠΠΈΠΆΠ½ΠΈΠΉ ΡΡΡΠΊ ΡΡΠ΅Π½Ρ ΠΈ ΠΎΠΊΠΎΠ½Π½ΠΎΠΉ ΡΠ°ΠΌΡ ΠΎΡΠ½Π°ΡΠ°Π΅ΡΡΡ ΡΠΏΠ΅ΡΠΈΠ°Π»ΡΠ½ΡΠΌ ΡΠ΅ΠΏΠ»ΠΎΠΈΠ·ΠΎΠ»ΡΡΠΈΠΎΠ½Π½ΡΠΌ ΠΌΠ°ΡΠ΅ΡΠΈΠ°Π»ΠΎΠΌ ΠΈ Π΄ΠΈΡΡΡΠ·ΠΈΠΎΠ½Π½ΠΎΠΉ Π»Π΅Π½ΡΠΎΠΉ Π΄Π»Ρ ΡΡΠΌΠΎΠΏΠΎΠ΄Π°Π²Π»Π΅Π½ΠΈΡ ΠΈ Π·Π°ΡΠΈΡΡ ΠΎΡ Π²Π»Π°Π³ΠΈ.
Π‘Π½Π°ΡΠ°Π»Π° Π½Π΅ΠΎΠ±Ρ
ΠΎΠ΄ΠΈΠΌΠΎ ΡΡΡΠ°Π½ΠΎΠ²ΠΈΡΡ ΠΎΡΠ»ΠΈΠ²ΠΠΎ Π²ΡΠ΅ΠΌΡ ΠΊΡΠ΅ΠΏΠ»Π΅Π½ΠΈΡ ΠΎΡΠ»ΠΈΠ²Π° ΠΌΠΎΠ½ΡΠ°ΠΆΠ½ΡΡ ΠΏΠ΅Π½Ρ Π½Π°Π½ΠΎΡΡΡ Π½Π° ΠΎΠΊΠΎΠ½Π½ΡΠΉ ΠΏΡΠΎΠ΅ΠΌ ΠΈ Π½Π° ΠΎΡΠ»ΠΈΠ² Ρ Π²Π½ΡΡΡΠ΅Π½Π½Π΅ΠΉ ΡΡΠΎΡΠΎΠ½Ρ. Π§ΡΠΎΠ±Ρ ΠΎΠ½ Π½Π΅ Π·Π°Π³Π½ΡΠ»ΡΡ ΠΈΠ·-Π·Π° ΡΠ°ΡΡΠΈΡΠ΅Π½ΠΈΡ ΠΏΠ΅Π½Ρ, Π½Π° Π²ΡΠ΅ΠΌΡ Π΅Π³ΠΎ ΠΏΠ»ΠΎΡΠ½ΠΎ ΠΏΡΠΈΠΆΠΈΠΌΠ°ΡΡ. ΠΠΎΡΠ»Π΅ ΡΠΎΠ³ΠΎ ΠΊΠ°ΠΊ ΠΎΡΠ»ΠΈΠ² Π·Π°ΠΊΡΠ΅ΠΏΠ»Π΅Π½, ΠΏΡΠΈΡΡΡΠΏΠ°ΡΡ ΠΊ ΠΌΠΎΠ½ΡΠ°ΠΆΡ ΠΌΠ΅ΡΠ°Π»Π»ΠΈΡΠ΅ΡΠΊΠΈΡ ΠΎΡΠΊΠΎΡΠΎΠ².
ΠΠ΅ΡΠ΅Π΄ ΡΠ΅ΠΌ ΠΊΠ°ΠΊ ΡΡΡΠ°Π½Π°Π²Π»ΠΈΠ²Π°ΡΡ ΠΌΠ΅ΡΠ°Π»Π»ΠΈΡΠ΅ΡΠΊΠΈΠ΅ ΠΎΡΠΊΠΎΡΡ, Π½Π΅ΠΎΠ±Ρ ΠΎΠ΄ΠΈΠΌΠΎ ΡΠ΅ ΠΌΠ΅ΡΡΠ°, Π² ΠΊΠΎΡΠΎΡΡΡ ΠΎΠ½ΠΈ Π±ΡΠ΄ΡΡ ΡΠΎΠΏΡΠΈΠΊΠ°ΡΠ°ΡΡΡΡ Ρ ΡΠ°ΠΌΠΎΠΉ ΠΎΠΊΠ½Π°, ΠΎΠ±ΡΠ°Π±ΠΎΡΠ°ΡΡ Π³Π΅ΡΠΌΠ΅ΡΠΈΠΊΠΎΠΌ.
ΠΠ΅ΡΠ°Π»Π»ΠΈΡΠ΅ΡΠΊΠΈΠ΅ ΠΎΡΠΊΠΎΡΡ Π·Π°ΠΊΡΠ΅ΠΏΠ»ΡΡΡ Ρ ΠΏΠΎΠΌΠΎΡΡΡ ΠΌΠΎΠ½ΡΠ°ΠΆΠ½ΠΎΠΉ ΠΏΠ΅Π½ΡΠ‘Π½Π°ΡΠ°Π»Π° ΡΡΡΠ°Π½Π°Π²Π»ΠΈΠ²Π°ΡΡ Π±ΠΎΠΊΠΎΠ²ΡΠ΅ ΡΠ»Π΅ΠΌΠ΅Π½ΡΡ Ρ ΡΠΎΠ±Π»ΡΠ΄Π΅Π½ΠΈΠ΅ΠΌ Π½Π΅ΠΎΠ±Ρ ΠΎΠ΄ΠΈΠΌΠΎΠ³ΠΎ ΡΠΊΠ»ΠΎΠ½Π° ΠΈΠ·Π½ΡΡΡΠΈ Π½Π°ΡΡΠΆΡ. ΠΠ΅ΡΡ Π½ΡΡ ΠΈ Π½ΠΈΠΆΠ½ΡΡ ΡΠ°ΡΡΠΈ ΠΊΠΎΡΡΠ΅ΠΊΡΠΈΡΡΡΡΡΡ ΠΏΡΠΈ ΠΏΠΎΠΌΠΎΡΠΈ Π½ΠΎΠΆΠ° Π² Π·Π°Π²ΠΈΡΠΈΠΌΠΎΡΡΠΈ ΠΎΡ ΡΡΠΎΠ²Π½Ρ Π½Π°ΠΊΠ»ΠΎΠ½Π°.
ΠΠΎΠΊΠΎΠ²ΡΠ΅ ΡΠ»Π΅ΠΌΠ΅Π½ΡΡ Π΄ΠΎΠ»ΠΆΠ½Ρ Π±ΡΡΡ ΡΡΡΠ°Π½ΠΎΠ²Π»Π΅Π½Ρ Π² Π²Π΅ΡΡΠΈΠΊΠ°Π»ΡΠ½ΠΎΠΌ ΠΏΠΎΠ»ΠΎΠΆΠ΅Π½ΠΈΠΈ ΠΈ ΠΏΡΠΈΡΡΠ½ΡΡΡ ΠΏΡΠΈ ΠΏΠΎΠΌΠΎΡΠΈ ΡΡΡΡΠΏΠΎΠ². ΠΠ΅ΡΡ Π½ΡΡ ΡΠ°ΡΡΡ ΠΏΠΎΠ΄Π³ΠΎΠ½ΡΠ΅ΡΡΡ ΠΏΠΎΠ΄ Π±ΠΎΠΊΠΎΠ²ΡΠ΅ ΡΠ»Π΅ΠΌΠ΅Π½ΡΡ. ΠΠ½Π° Π²ΡΡΠ°Π²Π½ΠΈΠ²Π°Π΅ΡΡΡ ΠΎΡΠ½ΠΎΡΠΈΡΠ΅Π»ΡΠ½ΠΎ Π²Π½Π΅ΡΠ½ΠΈΡ ΡΠ³Π»ΠΎΠ² ΠΈ Π·Π°ΠΊΡΠ΅ΠΏΠ»ΡΠ΅ΡΡΡ ΡΠ°ΠΌΠΎΡΠ΅Π·Π°ΠΌΠΈ.
ΠΠ° Π·Π°Π²Π΅ΡΡΠ°ΡΡΠ΅ΠΌ ΡΡΠ°ΠΏΠ΅ Π²ΡΠ΅ ΠΌΠ΅ΡΡΠ° ΠΏΡΠΈΠ»Π΅Π³Π°Π½ΠΈΡ ΠΎΠ±ΡΠ°Π±Π°ΡΡΠ²Π°ΡΡΡΡ Π³Π΅ΡΠΌΠ΅ΡΠΈΠΊΠΎΠΌ.
ΠΡΠΈ ΠΌΠΎΠ½ΡΠ°ΠΆΠ΅ ΠΎΡΠΊΠΎΡΠΎΠ² Π½Π° ΡΠ°ΡΠ°Π΄ ΠΈΠ· ΠΏΡΠΎΡΠ½Π°ΡΡΠΈΠ»Π° ΠΈΡΠΏΠΎΠ»ΡΠ·ΡΡΡ Π³ΠΎΡΠΈΠ·ΠΎΠ½ΡΠ°Π»ΡΠ½ΡΠ΅ ΠΏΠ΅ΡΠ΅ΠΌΡΡΠΊΠΈΠ ΡΠ»ΡΡΠ°Π΅ ΠΊΠΎΠ³Π΄Π° ΡΠ°ΡΠ°Π΄ Π΄ΠΎΠΌΠ° ΠΎΠ±ΡΠΈΡ ΠΏΡΠΎΡΠ½Π°ΡΡΠΈΠ»ΠΎΠΌ, ΠΏΡΠΈ ΠΎΡΠ΄Π΅Π»ΠΊΠ΅ ΠΎΠΊΠΎΠ½Π½ΡΡ ΠΏΡΠΎΠ΅ΠΌΠΎΠ² Π½Π΅ΠΎΠ±Ρ ΠΎΠ΄ΠΈΠΌΠΎ ΠΈΡΠΏΠΎΠ»ΡΠ·ΠΎΠ²Π°Π½ΠΈΠ΅ Π³ΠΎΡΠΈΠ·ΠΎΠ½ΡΠ°Π»ΡΠ½ΡΡ ΠΏΠ΅ΡΠ΅ΠΌΡΡΠ΅ΠΊ. ΠΡΠΎ Π±ΠΎΠΊΠΎΠ²ΡΠ΅ ΠΏΠΎΠ»ΠΎΡΠΊΠΈ, ΠΈΠ·Π³ΠΎΡΠΎΠ²Π»Π΅Π½Π½ΡΠ΅ ΠΈΠ· ΠΏΡΠΎΡΠ»ΠΈΡΡΠ°, ΠΊΠΎΡΠΎΡΡΠ΅ Ρ ΠΎΠ΄Π½ΠΎΠΉ ΡΡΠΎΡΠΎΠ½Ρ ΠΊΡΠ΅ΠΏΡΡ ΠΊ ΡΡΠ΅Π½Π΅, Π° Ρ Π΄ΡΡΠ³ΠΎΠΉ β ΠΊ ΠΌΠ΅ΡΠ°Π»Π»ΠΎΠΏΡΠΎΡΠΈΠ»Ρ. Π‘ΡΠ°Π»ΡΠ½ΡΠ΅ Π½Π°Π»ΠΈΡΠ½ΠΈΠΊΠΈ ΠΏΡΠΈΠ΄Π°ΡΡ ΡΠ°ΡΠ°Π΄Ρ Π·Π°Π²Π΅ΡΡΠ΅Π½Π½ΠΎΡΡΡ.
domzastroika.ru
ΠΡΠ΄Π΅Π»ΠΊΠ° ΠΎΠΊΠΎΠ½Π½ΡΡ ΠΎΡΠΊΠΎΡΠΎΠ² ΡΠ½Π°ΡΡΠΆΠΈ: ΡΠ΅ΠΌ ΠΎΡΠ΄Π΅Π»Π°ΡΡ, Π²ΠΈΠ΄Π΅ΠΎ
Π‘Π΅Π³ΠΎΠ΄Π½Ρ Π² ΠΆΠΈΠ»ΡΡ Π΄ΠΎΠΌΠ°Ρ , ΠΏΡΠ°ΠΊΡΠΈΡΠ΅ΡΠΊΠΈ ΠΏΠΎΠ²ΡΡΠ΄Ρ, ΠΌΠ΅Π½ΡΡΡ ΡΡΠ°ΡΡΠ΅, ΠΎΡΠΆΠΈΠ²ΡΠΈΠ΅ ΡΠ²ΠΎΠΉ Π²Π΅ΠΊ Π΄Π΅ΡΠ΅Π²ΡΠ½Π½ΡΠ΅ ΠΎΠΊΠ½Π°, Π·Π°ΠΌΠ΅Π½ΡΡ ΠΈΡ ΡΠΎΠ²ΡΠ΅ΠΌΠ΅Π½Π½ΡΠΌΠΈ ΠΏΠ»Π°ΡΡΠΈΠΊΠΎΠ²ΡΠΌΠΈ.
Π£Π΄ΠΎΠ²ΠΎΠ»ΡΡΡΠ²ΠΈΠ΅ ΡΡΠΎ Π½Π΅ ΠΈΠ· Π΄Π΅ΡΠ΅Π²ΡΡ ΠΈ Π½Π΅ΠΊΠΎΡΠΎΡΡΠ΅ Π»ΡΠ΄ΠΈ, ΠΏΡΠΈ ΡΠΌΠ΅Π½Π΅ ΠΎΠΊΠΎΠ½ Π² Π΄ΠΎΠΌΠ΅ Π² ΡΠ΅Π»ΡΡ ΡΠΊΠΎΠ½ΠΎΠΌΠΈΠΈ ΠΎΡΠΊΠ°Π·ΡΠ²Π°ΡΡΡΡ ΠΎΡ ΡΡΡΠ°Π½ΠΎΠ²ΠΊΠΈ Π½Π°ΡΡΠΆΠ½ΡΡ ΠΎΡΠΊΠΎΡΠΎΠ². Π Π²Π΅Π΄Ρ ΠΎΡΠ΄Π΅Π»ΠΊΠ° ΠΎΠΊΠΎΠ½Π½ΡΡ ΠΎΡΠΊΠΎΡΠΎΠ² ΡΠ½Π°ΡΡΠΆΠΈ β ΡΡΠΎ Π²Π°ΠΆΠ½Π°Ρ ΡΠΎΡΡΠ°Π²Π»ΡΡΡΠ°Ρ ΡΠ΅ΠΌΠΎΠ½ΡΠ° ΠΈ ΡΠ΅Π³ΠΎΠ΄Π½Ρ ΠΏΠΎΠ³ΠΎΠ²ΠΎΡΠΈΠΌ ΠΎΠ± ΡΡΠΎΠΌ.
ΠΠ»Π°ΡΡΠΈΠΊΠΎΠ²ΡΠ΅ ΠΎΠΊΠ½Π° ΠΎΠ±Π»Π°Π΄Π°ΡΡ ΠΏΡΠ΅ΠΊΡΠ°ΡΠ½ΠΎΠΉ ΡΠ΅ΠΏΠ»ΠΎ ΠΈ Π·Π²ΡΠΊΠΎΠΈΠ·ΠΎΠ»ΡΡΠΈΠ΅ΠΉ, ΠΈΡ Π½Π΅ Π½ΡΠΆΠ½ΠΎ ΡΡΠ΅ΠΏΠ»ΡΡΡ ΠΈ ΠΊΡΠ°ΡΠΈΡΡ. Π’Π΅ΠΌ Π½Π΅ ΠΌΠ΅Π½Π΅Π΅, ΡΡΠΎΠ±Ρ ΠΏΠ»Π°ΡΡΠΈΠΊΠΎΠ²ΠΎΠ΅ ΠΎΠΊΠ½ΠΎ ΡΠ»ΡΠΆΠΈΠ»ΠΎ Π΄ΠΎΠ»Π³ΠΎ, Π½ΡΠΆΠ½ΠΎ Π²ΡΠ΅ ΠΎΠΏΠ΅ΡΠ°ΡΠΈΠΈ, ΠΏΠΎ Π΅Π³ΠΎ ΡΡΡΠ°Π½ΠΎΠ²ΠΊΠ΅, Π²ΡΠΏΠΎΠ»Π½ΡΡΡ Π² ΡΡΡΠΎΠ³ΠΎΠΌ ΡΠΎΠΎΡΠ²Π΅ΡΡΡΠ²ΠΈΠΈ Ρ ΡΠ΅Ρ Π½ΠΈΡΠ΅ΡΠΊΠΈΠΌΠΈ ΡΡΠ΅Π±ΠΎΠ²Π°Π½ΠΈΡΠΌΠΈ.

ΠΡΠΈ ΠΌΠΎΠ½ΡΠ°ΠΆΠ΅ ΠΎΠΊΠ½Π° Π² ΠΏΡΠΎΠ΅ΠΌ, Π·Π°Π·ΠΎΡ ΠΌΠ΅ΠΆΠ΄Ρ ΡΠ°ΠΌΠΎΠΉ ΠΈ ΡΡΠ΅Π½ΠΎΠΉ Π·Π°ΠΏΠΎΠ»Π½ΡΠ΅ΡΡΡ ΠΌΠΎΠ½ΡΠ°ΠΆΠ½ΠΎΠΉ ΠΏΠ΅Π½ΠΎΠΉ, ΠΊΠΎΡΠΎΡΠ°Ρ Π±ΠΎΠΈΡΡΡ ΠΏΡΡΠΌΡΡ ΡΠΎΠ»Π½Π΅ΡΠ½ΡΡ Π»ΡΡΠ΅ΠΉ ΠΈ Π²Π»Π°Π³ΠΈ. ΠΠΎΠ΄ Π΄Π΅ΠΉΡΡΠ²ΠΈΠ΅ΠΌ ΡΡΠΈΡ ΡΠ°ΠΊΡΠΎΡΠΎΠ², ΠΏΠ΅Π½Π° ΠΌΠΎΠΆΠ΅Ρ ΡΠ΅ΡΡΡΡ ΡΠ΅ΠΏΠ»ΠΎΠΈΠ·ΠΎΠ»ΡΡΠΈΠΎΠ½Π½ΡΠ΅ ΡΠ²ΠΎΠΉΡΡΠ²Π° ΠΈ ΡΠ°Π·ΡΡΡΠ°ΡΡΡΡ. ΠΠΌΠ΅Π½Π½ΠΎ ΠΏΠΎΡΡΠΎΠΌΡ Π½Π΅Π΄ΠΎΠΏΡΡΡΠΈΠΌΠΎ Π½Π°Π΄ΠΎΠ»Π³ΠΎ ΠΎΡΡΠ°Π²Π»ΡΡΡ ΠΎΡΠΊΡΡΡΡΠΌ ΠΌΠΎΠ½ΡΠ°ΠΆΠ½ΡΠΉ ΡΠΎΠ².
ΠΡΠ΄Π΅Π»ΠΊΠ° Π½Π°ΡΡΠΆΠ½ΡΡ ΠΎΠΊΠΎΠ½Π½ΡΡ ΠΎΡΠΊΠΎΡΠΎΠ² ΡΠ²ΠΎΠΈΠΌΠΈ ΡΡΠΊΠ°ΠΌΠΈ
ΠΡΡΡΠ΅ Π²ΡΠ΅Π³ΠΎ ΡΡΠ°Π·Ρ Π·Π°Π΄Π΅Π»Π°ΡΡ ΠΏΡΠΎΠ±Π»Π΅ΠΌΠ½ΡΠ΅ ΠΌΠ΅ΡΡΠ° ΠΏΠΎΡΠ»Π΅ ΡΡΡΠ°Π½ΠΎΠ²ΠΊΠΈ ΠΎΠΊΠ½Π°. Π‘Π΄Π΅Π»Π°ΡΡ ΡΡΠΎ ΠΌΠΎΠΆΠ½ΠΎ Π½Π΅ΡΠΊΠΎΠ»ΡΠΊΠΈΠΌΠΈ ΡΠΏΠΎΡΠΎΠ±Π°ΠΌΠΈ. Π‘Π°ΠΌΡΠΌΠΈ ΡΠ°ΡΠΏΡΠΎΡΡΡΠ°Π½Π΅Π½Π½ΡΠΌΠΈ Π² ΠΎΡΠ΄Π΅Π»ΠΊΠ΅ ΠΎΠΊΠΎΠ½Π½ΡΡ ΠΎΡΠΊΠΎΡΠΎΠ² ΡΠ½Π°ΡΡΠΆΠΈ ΡΠ²Π»ΡΡΡΡΡ:
- ΠΎΡΡΡΠΊΠ°ΡΡΡΠΈΠ²Π°Π½ΠΈΠ΅;
- ΠΏΡΠΈΠΌΠ΅Π½Π΅Π½ΠΈΠ΅ ΡΡΠ½Π΄Π²ΠΈΡ-ΠΏΠ°Π½Π΅Π»Π΅ΠΉ.
1. ΠΡΡΡΠΊΠ°ΡΡΡΠΈΠ²Π°Π½ΠΈΠ΅, Π±ΠΎΠ»Π΅Π΅ Π΄Π΅ΡΠ΅Π²ΡΠΉ ΡΠΏΠΎΡΠΎΠ± ΠΈ ΠΊ ΡΠΎΠΌΡ ΠΆΠ΅, Π½Π΅ ΡΡΠ΅Π±ΡΠ΅Ρ ΠΎΡ ΠΈΡΠΏΠΎΠ»Π½ΠΈΡΠ΅Π»Ρ ΠΎΡΠΎΠ±ΠΎΠ³ΠΎ ΠΌΠ°ΡΡΠ΅ΡΡΡΠ²Π°. ΠΠ³ΠΎ Π²ΠΏΠΎΠ»Π½Π΅ ΠΌΠΎΠΆΠ½ΠΎ Π²ΡΠΏΠΎΠ»Π½ΠΈΡΡ ΡΠ°ΠΌΠΎΡΡΠΎΡΡΠ΅Π»ΡΠ½ΠΎ.

ΠΠ»Π°Π²Π½ΠΎΠ΅ ΡΠ΄Π΅Π»Π°ΡΡ Π²ΡΠ΅ Π°ΠΊΠΊΡΡΠ°ΡΠ½ΠΎ, Π½Π΅ ΠΈΡΠΏΠΎΡΡΠΈΠ² ΠΈ Π½Π΅ ΠΈΡΠΏΠ°ΡΠΊΠ°Π² ΠΏΡΠΎΡΠΈΠ»Ρ. ΠΡΠ°Π²Π΄Π°, Π²ΡΠΏΠΎΠ»Π½ΡΡΡ Π΄Π°Π½Π½ΡΡ ΠΎΠΏΠ΅ΡΠ°ΡΠΈΡ ΠΏΡΠΈΠ΄Π΅ΡΡΡ Π½Π΅ ΠΎΠ΄Π½ΠΎΠΊΡΠ°ΡΠ½ΠΎ. ΠΠ΅Π΄Ρ ΡΡΡΠΊΠ°ΡΡΡΠΊΠ° Π½Π΅ ΠΎΡΠ΅Π½Ρ Π½Π°Π΄Π΅ΠΆΠ½ΠΎ ΡΠΊΡΠ΅ΠΏΠ»ΡΠ΅ΡΡΡ Ρ ΠΏΠ»Π°ΡΡΠΈΠΊΠΎΠ²ΡΠΌ ΠΏΡΠΎΡΠΈΠ»Π΅ΠΌ ΠΈ ΠΈΠΌΠ΅Π΅Ρ ΡΠ°Π·Π½ΡΠ΅ Ρ Π½ΠΈΠΌ ΠΊΠΎΡΡΡΠΈΡΠΈΠ΅Π½ΡΡ ΡΠ°ΡΡΠΈΡΠ΅Π½ΠΈΡ.
ΠΠΎΠ΄ Π²ΠΎΠ·Π΄Π΅ΠΉΡΡΠ²ΠΈΠ΅ΠΌ Π²Π½Π΅ΡΠ½ΠΈΡ ΡΠ°ΠΊΡΠΎΡΠΎΠ², ΠΎΠ½Π° ΠΎΠ±ΡΠ·Π°ΡΠ΅Π»ΡΠ½ΠΎ ΠΏΠΎΡΡΠ΅ΡΠΊΠ°Π΅ΡΡΡ ΠΈ Π΅Π΅ Π½ΡΠΆΠ½ΠΎ Π±ΡΠ΄Π΅Ρ Π²ΠΎΡΡΡΠ°Π½Π°Π²Π»ΠΈΠ²Π°ΡΡ.
ΠΡΠΏΠΎΠ»Π½ΡΡΡ ΠΎΡΡΡΠΊΠ°ΡΡΡΠΈΠ²Π°Π½ΠΈΠ΅ ΠΎΡΠΊΠΎΡΠΎΠ² ΠΌΠΎΠΆΠ½ΠΎ ΡΡΡΠΊΠ°ΡΡΡΠ½ΠΎΠΉ ΡΠΌΠ΅ΡΡΡ. Π‘ΡΠ΅Π½Ρ ΠΏΡΠ΅Π΄Π²Π°ΡΠΈΡΠ΅Π»ΡΠ½ΠΎ ΠΎΡΠΈΡΠ°ΡΡ ΠΈ Π·Π°ΡΠ΅ΠΌ Π½Π°Π½ΠΎΡΡΡ ΡΠ΅ΡΠ½ΠΎΠ²ΠΎΠΉ ΡΠ»ΠΎΠΉ ΡΠΌΠ΅ΡΠΈ Π½Π° ΡΠ΅ΠΌΠ΅Π½ΡΠ½ΠΎΠΉ ΠΈΠ»ΠΈ Π³ΠΈΠΏΡΠΎΠ²ΠΎΠΉ ΠΎΡΠ½ΠΎΠ²Π΅. ΠΠΎΡΠ»Π΅ ΡΠΎΠ³ΠΎ ΠΊΠ°ΠΊ ΡΠ΅ΡΠ½ΠΎΠ²ΠΎΠΉ ΡΠ»ΠΎΠΉ ΠΏΡΠΎΡΠΎΡ Π½Π΅Ρ, Π½Π°Π½ΠΎΡΡΡ ΡΠΈΡΡΠΎΠ²ΠΎΠΉ ΡΠ»ΠΎΠΉ, ΠΊΠΎΡΠΎΡΡΠΉ Π·Π°ΡΠ΅ΠΌ ΠΌΠΎΠΆΠ½ΠΎ ΠΎΠΊΡΠ°ΡΠΈΡΡ.
2. ΠΠ²ΠΈΠ΄Ρ Π½Π΅Π΄ΠΎΠ»Π³ΠΎΠ²Π΅ΡΠ½ΠΎΡΡΠΈ ΠΎΡΡΡΠΊΠ°ΡΡΡΠ΅Π½Π½ΠΎΠ³ΠΎ ΡΠ»ΠΎΡ, Π΄Π»Ρ ΡΠΎΠ²ΡΠ΅ΠΌΠ΅Π½Π½ΡΡ ΠΏΠ»Π°ΡΡΠΈΠΊΠΎΠ²ΡΡ ΠΎΠΊΠΎΠ½ Π±ΠΎΠ»Π΅Π΅ ΠΏΡΠΈΠ΅ΠΌΠ»Π΅ΠΌ ΡΠΏΠΎΡΠΎΠ± ΠΎΡΠ΄Π΅Π»ΠΊΠΈ ΠΎΠΊΠΎΠ½Π½ΡΡ ΠΎΡΠΊΠΎΡΠΎΠ² ΡΡΠ½Π΄Π²ΠΈΡ-ΠΏΠ°Π½Π΅Π»ΡΠΌΠΈ.

ΠΠΊΠ½ΠΎ Π²ΡΠ³Π»ΡΠ΄ΠΈΡ ΡΡΡΠ΅ΡΠΈΡΠ΅ΡΠΊΠΈ Π·Π°Π²Π΅ΡΡΠ΅Π½Π½ΡΠΌ ΠΈ Π³Π°ΡΠΌΠΎΠ½ΠΈΡΠ½ΡΠΌ. Π‘ΡΠ½Π΄Π²ΠΈΡ ΠΏΠ°Π½Π΅Π»Ρ ΠΏΡΠ΅Π΄ΡΡΠ°Π²Π»ΡΠ΅Ρ ΡΠΎΠ±ΠΎΠΉ Π΄Π²Π° ΠΏΠ»Π°ΡΡΠΈΠΊΠΎΠ²ΡΡ Π»ΠΈΡΡΠ°, Ρ ΠΏΡΠΎΡΠ»ΠΎΠΉΠΊΠΎΠΉ Π²ΡΠΏΠ΅Π½Π΅Π½Π½ΠΎΠ³ΠΎ ΠΏΠ΅Π½ΠΎΠΏΠΎΠ»ΠΈΡΡΠ΅ΡΠ°Π½Π° ΠΌΠ΅ΠΆΠ΄Ρ Π½ΠΈΠΌΠΈ.
ΠΡΠΈ ΠΈΡΠΏΠΎΠ»ΡΠ·ΠΎΠ²Π°Π½ΠΈΠΈ Π΄Π°Π½Π½ΠΎΠ³ΠΎ ΡΠΏΠΎΡΠΎΠ±Π°, Π·Π½Π°ΡΠΈΡΠ΅Π»ΡΠ½ΠΎ ΡΠ²Π΅Π»ΠΈΡΠΈΠ²Π°ΡΡΡΡ ΡΠ΅ΠΏΠ»ΠΎΠΈΠ·ΠΎΠ»ΡΡΠΈΠΎΠ½Π½ΡΠ΅ ΡΠ²ΠΎΠΉΡΡΠ²Π° ΠΎΠΊΠ½Π°, ΠΌΠ°ΡΠ΅ΡΠΈΠ°Π» Π½Π΅ ΡΠ°Π·ΡΡΡΠ°Π΅ΡΡΡ ΠΈ Π½Π΅ ΠΌΠ΅Π½ΡΠ΅Ρ ΡΠ²ΠΎΠ΅Π³ΠΎ ΡΠ²Π΅ΡΠ°, ΠΏΡΠΈ Π²ΠΎΠ·Π΄Π΅ΠΉΡΡΠ²ΠΈΠΈ Π½Π° Π½Π΅Π³ΠΎ Π²Π½Π΅ΡΠ½ΠΈΡ ΡΠ°ΠΊΡΠΎΡΠΎΠ², ΠΏΡΠ΅ΠΊΡΠ°ΡΠ½ΠΎ ΠΌΠΎΠ΅ΡΡΡ, ΠΈ ΠΎΡΠ΅Π½Ρ Π΄ΠΎΠ»Π³ΠΎΠ²Π΅ΡΠ΅Π½. ΠΠ΅Π΄ΠΎΡΡΠ°ΡΠΎΠΊ β Π΄ΠΎΠ²ΠΎΠ»ΡΠ½ΠΎ Π²ΡΡΠΎΠΊΠ°Ρ ΡΡΠΎΠΈΠΌΠΎΡΡΡ ΠΈ ΡΠ»ΠΎΠΆΠ½ΠΎΡΡΡ Π² ΡΡΡΠ°Π½ΠΎΠ²ΠΊΠ΅.
ΠΠ½ΠΎΠ³Π΄Π° Π΄Π»Ρ Π½Π°ΡΡΠΆΠ½ΠΎΠΉ ΠΎΡΠ΄Π΅Π»ΠΊΠΈ ΠΎΠΊΠΎΠ½Π½ΡΡ ΠΎΡΠΊΠΎΡΠΎΠ² ΠΈΡΠΏΠΎΠ»ΡΠ·ΡΡΡ ΡΡΠ΅ΠΈΡΡΡΠΉ ΠΏΠ»Π°ΡΡΠΈΠΊ. ΠΠ΄Π½Π°ΠΊΠΎ Π΄Π°Π½Π½ΡΠΉ Π²Π°ΡΠΈΠ°Π½Ρ ΡΠ΅Π±Ρ Π½Π΅ ΠΎΠΏΡΠ°Π²Π΄ΡΠ²Π°Π΅Ρ, ΡΠ°ΠΊ ΠΊΠ°ΠΊ ΡΡΠΎΡ ΠΌΠ°ΡΠ΅ΡΠΈΠ°Π» ΠΎΡΠ΅Π½Ρ Ρ ΡΡΠΏΠΊΠΈΠΉ, Π½Π΅Π΄ΠΎΠ»Π³ΠΎΠ²Π΅ΡΠ½ΡΠΉ ΠΈ Π²ΡΠ³ΠΎΡΠ°Π΅Ρ Π½Π° ΡΠΎΠ»Π½ΡΠ΅.
3. ΠΡΠΎΠΌΠ΅ Π²ΡΡΠ΅ ΠΏΠ΅ΡΠ΅ΡΠΈΡΠ»Π΅Π½Π½ΡΡ ΡΠΏΠΎΡΠΎΠ±ΠΎΠ² ΠΎΡΠ΄Π΅Π»ΠΊΠΈ Π½Π°ΡΡΠΆΠ½ΡΡ ΠΎΡΠΊΠΎΡΠΎΠ², Π΅ΡΡΡ Π΅ΡΠ΅ ΡΠΏΠΎΡΠΎΠ±, Π·Π°ΠΊΠ»ΡΡΠ°ΡΡΠΈΠΉΡΡ Π² ΠΏΡΠΈΠΌΠ΅Π½Π΅Π½ΠΈΠΈ ΡΠΏΠ»ΠΎΡΠ½ΠΈΡΠ΅Π»ΡΠ½ΠΎΠΉ ΠΏΠΎΠ»ΠΈΡΡΠ΅ΡΠ°Π½ΠΎΠ²ΠΎΠΉ Π»Π΅Π½ΡΡ.

ΠΠ½Π° ΠΏΡΠ΅ΠΊΡΠ°ΡΠ½ΠΎ Π·Π°ΡΠΈΡΠ°Π΅Ρ ΠΌΠΎΠ½ΡΠ°ΠΆΠ½ΡΠΉ ΡΠΎΠ² ΠΎΡ Π²ΠΎΠ·Π΄Π΅ΠΉΡΡΠ²ΠΈΠΉ Π²Π½Π΅ΡΠ½Π΅ΠΉ ΡΡΠ΅Π΄Ρ ΠΈ ΠΎΡΠ²ΠΎΠ΄ΠΈΡ Π²Π»Π°Π³Ρ. ΠΠ°Π½Π½ΡΠΉ ΠΌΠ΅ΡΠΎΠ΄ Ρ ΠΎΡΠΎΡΠΎ Π·Π°ΡΠ΅ΠΊΠΎΠΌΠ΅Π½Π΄ΠΎΠ²Π°Π» ΡΠ΅Π±Ρ Π² ΡΡΡΠ°Π½Π°Ρ ΠΠ°ΠΏΠ°Π΄Π½ΠΎΠΉ ΠΠ²ΡΠΎΠΏΡ, Π½ΠΎ Π² Π ΠΎΡΡΠΈΠΈ ΠΏΠΎΠΊΠ° ΠΈΡΠΏΠΎΠ»ΡΠ·ΡΠ΅ΡΡΡ ΠΎΡΠ΅Π½Ρ ΡΠ΅Π΄ΠΊΠΎ.

ΠΠΈΠ΄Π΅ΠΎ: ΡΠ΅ΠΌ ΠΎΡΠ΄Π΅Π»Π°ΡΡ Π½Π°ΡΡΠΆΠ½ΡΠΉ Π²Π½Π΅ΡΠ½ΠΈΠΉ ΠΎΡΠΊΠΎΡ ΠΎΠΊΠ½Π°.
ΠΠΈΠ΄Π΅ΠΎ: ΠΎΡΠ΄Π΅Π»ΠΊΠ° ΠΎΠΊΠΎΠ½ ΡΠ½Π°ΡΡΠΆΠΈ ΠΏΠ΅Π½ΠΎΠΏΠΎΠ»ΠΈΡΡΠΈΡΠΎΠ»ΠΎΠΌ ΡΠ²ΠΎΠΈΠΌΠΈ ΡΡΠΊΠ°ΠΌΠΈ.
P.S. ΠΠ°ΠΊΠ»ΡΡΠ΅Π½ΠΈΠ΅, ΠΎΠ±ΡΠ°ΡΠΈΡΠ΅ Π²Π½ΠΈΠΌΠ°Π½ΠΈΠ΅ Π½Π° ΠΊΠ²Π°Π»ΠΈΡΠΈΠΊΠ°ΡΠΈΡ ΠΌΠ°ΡΡΠ΅ΡΠΎΠ², ΠΊΠΎΡΠΎΡΡΠ΅ Π±ΡΠ΄ΡΡ Π΄Π΅Π»Π°ΡΡ ΠΎΡΠ΄Π΅Π»ΠΊΡ Π½Π°ΡΡΠΆΠ½ΡΡ ΠΎΠΊΠΎΠ½ ΠΎΡΠΊΠΎΡΠ°ΠΌΠΈ. ΠΡΠΌΠ°Ρ ΡΡΠΎΠΈΡ Π·Π°ΠΏΠ»Π°ΡΠΈΡΡ Π΄ΠΎΡΠΎΠΆΠ΅, Π½ΠΎ Π½Π° ΡΡΠΎΠΌ Π²Ρ ΠΏΠΎΠ»ΡΡΠΈΡΠ΅ Π΄ΠΎΡΡΠΎΠΉΠ½ΠΎΠ΅ ΠΊΠ°ΡΠ΅ΡΡΠ²ΠΎ, Π΄Π° ΠΈ Π½Π΅ΡΠ²Ρ ΡΠ±Π΅ΡΠ΅ΠΆΡΡΠ΅.
ΠΠ»ΠΈ ΡΠ°ΠΌΠΈ ΠΌΠΎΠΆΠ΅ΡΠ΅ ΠΏΠΎΠΏΡΠΎΠ±ΠΎΠ²Π°ΡΡ Π²ΡΠΏΠΎΠ»Π½ΠΈΡΡ Π΄Π°Π½Π½ΡΠΉ ΡΠΈΠΏ ΡΠ°Π±ΠΎΡ. Π£Π΄Π°ΡΠΈ!
dachadoma.ru
ΠΡΠΊΠΎΡΡ Π½Π° ΠΎΠΊΠ½Π° Π½Π°ΡΡΠΆΠ½ΡΠ΅: ΠΏΠΎΡΠ°Π³ΠΎΠ²Π°Ρ ΠΈΠ½ΡΡΡΡΠΊΡΠΈΡ ΠΏΠΎ ΡΡΡΠ°Π½ΠΎΠ²ΠΊΠ΅
ΠΠΎΡΠ»Π΅ Π·Π°ΠΌΠ΅Π½Ρ ΠΎΠΊΠΎΠ½Π½ΡΡ ΠΊΠΎΠ½ΡΡΡΡΠΊΡΠΈΠΉ Π±ΠΎΠ»ΡΡΠΈΠ½ΡΡΠ²ΠΎ Π·Π°Π±ΡΠ²Π°ΡΡ, ΡΡΠΎ ΡΡΠ΅Π±ΡΠ΅ΡΡΡ ΠΎΡΠ΄Π΅Π»ΠΊΠ° Π½Π°ΡΡΠΆΠ½ΡΡ ΠΎΡΠΊΠΎΡΠΎΠ² ΠΏΠ»Π°ΡΡΠΈΠΊΠΎΠ²ΡΡ ΠΎΠΊΠΎΠ½.
ΠΡΠΎΡ Π²ΠΈΠ΄ ΠΎΡΠ΄Π΅Π»ΠΊΠΈ ΡΠ΄Π΅Π»Π°ΡΡ Π½ΡΠΆΠ½ΠΎ, ΠΏΠΎΡΠΊΠΎΠ»ΡΠΊΡ ΠΏΠΎΠΌΠΈΠΌΠΎ Π΄Π΅ΠΊΠΎΡΠ°ΡΠΈΠ²Π½ΠΎΠΉ Π·Π°Π΄Π°ΡΠΈ, ΠΎΡΠΊΠΎΡΡ ΠΈΡΠΏΠΎΠ»Π½ΡΡΡ ΠΈ ΡΡΠΈΠ»ΠΈΡΠ°ΡΠ½ΡΡ ΡΡΠ½ΠΊΡΠΈΡ.
ΠΠ°ΡΡΠΆΠ½Π°Ρ ΠΎΡΠ΄Π΅Π»ΠΊΠ° ΠΎΠΊΠΎΠ½Π½ΡΡ ΠΈ Π΄Π²Π΅ΡΠ½ΡΡ ΠΎΡΠΊΠΎΡΠΎΠ² ΠΈΡΠΏΠΎΠ»ΡΠ·ΡΠ΅ΡΡΡ Π΄Π»Ρ ΠΏΡΠ΅Π΄ΠΎΡ ΡΠ°Π½Π΅Π½ΠΈΡ ΠΏΠΎΡΡΡΠΎΠΉΠΊΠΈ ΠΈ ΡΠ°ΡΠ°Π΄Π° Π΄ΠΎΠΌΠ° ΠΏΡΠΎΡΠΈΠ² ΡΡΡΠΎΡΡΠΈ, ΡΠΊΠ²ΠΎΠ·Π½ΡΠΊΠΎΠ², ΡΠ»Π΅Π΄ΠΎΠ²Π°ΡΠ΅Π»ΡΠ½ΠΎ, ΠΈΠ³Π½ΠΎΡΠΈΡΠΎΠ²Π°ΡΡ ΡΠ°ΠΊΠΈΠ΅ ΡΠ°Π±ΠΎΡΡ Π½Π΅ ΡΡΠΎΠΈΡ.
ΠΡΠΊΠΎΡΡ ΡΠ²ΠΎΠΈΠΌΠΈ ΡΡΠΊΠ°ΠΌΠΈ Π½Π° Π½Π°ΡΡΠΆΠ½ΡΠ΅ ΠΎΠΊΠ½Π° β ΡΡΠΎ ΡΡΡΠ΄Π½ΡΠΉ ΠΏΡΠΎΡΠ΅ΡΡ, Π½ΠΎ ΠΎΡΡΡΠ΅ΡΡΠ²ΠΈΠΌΡΠΉ.
ΠΠ°Π΄Π°ΡΠΈ ΠΎΡΠΊΠΎΡΠΎΠ² ΡΠ½Π°ΡΡΠΆΠΈ
ΠΠ°ΡΡΠΆΠ½ΡΠ΅ ΠΎΡΠΊΠΎΡΡ Π½Π° ΠΎΠΊΠ½Π°Ρ
Π΄ΠΎ ΠΈ ΠΏΠΎΡΠ»Π΅ΠΡΠ»ΠΈ Π½Π΅ Π·Π°Π΄Π΅Π»Π°ΡΡ Π²Π½Π΅ΡΠ½Π΅ ΠΏΠ΅Π½Ρ, ΡΠΎ Π°ΡΠΌΠΎΡΡΠ΅ΡΠ½ΡΠ΅ ΡΠ²Π»Π΅Π½ΠΈΡ ΠΏΠΎΡΠΏΠΎΡΠΎΠ±ΡΡΠ²ΡΡΡ ΡΡΡΠ°ΡΠ΅ ΡΡΠ½ΠΊΡΠΈΠΎΠ½Π°Π»ΡΠ½ΡΡ ΠΊΠ°ΡΠ΅ΡΡΠ². Π ΠΏΡΠΈΠΌΠ΅ΡΡ, ΡΠ΅ΠΌΠΏΠ΅ΡΠ°ΡΡΡΠ½ΡΠ΅ ΡΠΊΠ°ΡΠΊΠΈ ΠΎΠΊΠ°Π·ΡΠ²Π°ΡΡ Π½Π΅ΠΏΠΎΠΏΡΠ°Π²ΠΈΠΌΡΠΉ Π²ΡΠ΅Π΄ ΠΌΠΎΠ½ΡΠ°ΠΆΠ½ΡΠΌ ΡΠ²Π°ΠΌ. ΠΠΎΠ·ΠΌΠΎΠΆΠ½ΠΎ ΠΎΡΡΡΠΎΡΠΈΡΡ Π²Π½ΡΡΡΠ΅Π½Π½ΡΡ ΠΎΠ±Π»ΠΈΡΠΎΠ²ΠΊΡ ΠΎΡΠΊΠΎΡΠΎΠ², Π½ΠΎ Π½Π°ΡΡΠΆΠ½ΡΡ ΠΊΠΎΠ½ΡΡΡΡΠΊΡΠΈΡ ΡΠ΅ΠΊΠΎΠΌΠ΅Π½Π΄ΡΠ΅ΡΡΡ ΡΡΠ΅ΠΏΠ»ΡΡΡ Π½Π΅ΠΌΠ΅Π΄Π»Π΅Π½Π½ΠΎ ΠΏΠΎΡΠ»Π΅ ΡΡΡΠ°Π½ΠΎΠ²ΠΊΠΈ ΠΎΠΊΠΎΠ½Π½ΠΎΠ³ΠΎ Π±Π»ΠΎΠΊΠ°. Π‘Π»Π΅Π΄ΠΎΠ²Π°ΡΠ΅Π»ΡΠ½ΠΎ, Π²Π½Π΅ΡΠ½ΡΡ ΠΎΡΠ΄Π΅Π»ΠΊΠ° ΠΎΠΊΠΎΠ½ ΠΠΠ₯ β ΡΡΠ»ΠΎΠ²ΠΈΠ΅ Π΄ΠΎΠ»Π³ΠΎΠ²Π΅ΡΠ½ΠΎΡΡΠΈ ΡΠΊΡΠΏΠ»ΡΠ°ΡΠ°ΡΠΈΠΈ.
Π Π°Π·Π½ΠΎΠ²ΠΈΠ΄Π½ΠΎΡΡΠΈ ΠΌΠ°ΡΠ΅ΡΠΈΠ°Π»Π°
ΠΡΠ΅ΠΆΠ΄Π΅ ΡΠ΅ΠΌ Π·Π°Π΄Π°Π²Π°ΡΡΡΡ Π²ΠΎΠΏΡΠΎΡΠΎΠΌ, ΠΊΠ°ΠΊ ΡΡΡΠ°Π½ΠΎΠ²ΠΈΡΡ ΡΠ°ΠΌΠΎΡΡΠΎΡΡΠ΅Π»ΡΠ½ΠΎ ΠΎΡΠΊΠΎΡΡ Π½Π° ΠΎΠΊΠ½Π° ΡΠ½Π°ΡΡΠΆΠΈ, Π½Π΅ΠΎΠ±Ρ ΠΎΠ΄ΠΈΠΌΠΎ ΠΎΠ·Π½Π°ΠΊΠΎΠΌΠΈΡΡΡΡ Ρ ΡΡΡΠ΅ΡΡΠ²ΡΡΡΠΈΠΌΠΈ Π²ΠΈΠ΄Π°ΠΌΠΈ ΡΡΡΠΎΠΉΠΌΠ°ΡΠ΅ΡΠΈΠ°Π»Π°. ΠΠ°ΡΠΈΠ°Π½ΡΠΎΠ² ΠΎΠ±Π»ΠΈΡΠΎΠ²ΠΊΠΈ ΠΌΠ½ΠΎΠ³ΠΎ, Π΄Π»Ρ ΠΊΠΎΡΠΎΡΡΡ ΠΈΡΠΏΠΎΠ»ΡΠ·ΡΡΡΡΡ ΠΌΠ°ΡΠ΅ΡΠΈΠ°Π»Ρ:
- ΠΠ»Π°ΡΡΠΈΠΊ.
- ΠΠΈΠΏΡΠΎΠΊΠ°ΡΡΠΎΠ½.
- Π¨ΡΡΠΊΠ°ΡΡΡΠΊΠ°.
- ΠΠ΅ΡΠ°Π»Π».
- ΠΠ΅Π½ΠΎΠΏΠ»Π°ΡΡ.
- Π‘ΡΠ½Π΄Π²ΠΈΡ-ΠΏΠ°Π½Π΅Π»ΠΈ.
- ΠΠ°Π³ΠΎΠ½ΠΊΠ°.
ΠΠΎΠ΄Π³ΠΎΡΠΎΠ²ΠΈΡΠ΅Π»ΡΠ½ΡΠ΅ ΡΠ°Π±ΠΎΡΡ
ΠΠΎΠ΄Π³ΠΎΡΠΎΠ²ΠΊΠ° ΠΊ Π½Π°ΡΡΠΆΠ½ΠΎΠΉ ΠΎΡΠ΄Π΅Π»ΠΊΠ΅ ΠΎΠΊΠΎΠ½Π½ΠΎΠ³ΠΎ ΠΏΡΠΎΡΠΌΠ°Π’Π°ΠΊΠΎΠΉ Π²ΠΎΠΏΡΠΎΡ, ΡΠ΅ΠΌ ΠΎΡΠ΄Π΅Π»Π°ΡΡ ΠΎΡΠΊΠΎΡΡ ΠΎΠΊΠΎΠ½ ΡΠ½Π°ΡΡΠΆΠΈ, ΡΡΡΠ΅ΡΡΠ²Π΅Π½Π½ΡΠΉ, Π½ΠΎ ΠΏΡΠ΅ΠΆΠ΄Π΅ Π²ΡΠ΅Π³ΠΎ ΡΠ»Π΅Π΄ΡΠ΅Ρ ΠΈΠ·ΡΡΠΈΡΡ ΠΎΡΠ½ΠΎΠ²Ρ ΠΏΠΎΠ΄Π³ΠΎΡΠΎΠ²ΠΈΡΠ΅Π»ΡΠ½ΡΡ ΡΠ°Π±ΠΎΡ. ΠΠΎΡΠΊΠΎΠ»ΡΠΊΡ Π½Π°ΡΡΠΆΠ½Π°Ρ ΠΎΡΠ΄Π΅Π»ΠΊΠ° ΠΎΠ±ΡΠ·Π°ΡΠ΅Π»ΡΠ½Π° ΠΏΡΠΎΡΠ΅Π΄ΡΡΠ° Π΄Π»Ρ Π²ΡΠ΅Ρ ΠΌΠ΅ΡΠΎΠ΄ΠΎΠ². ΠΠΎΠ΄Π³ΠΎΡΠΎΠ²ΠΈΡΠ΅Π»ΡΠ½ΡΠ΅ ΡΠ°Π±ΠΎΡΡ Π²ΠΊΠ»ΡΡΠ°ΡΡ ΡΡΠ΄ ΠΌΠΎΠΌΠ΅Π½ΡΠΎΠ²:
- Π‘ ΠΏΠΎΠΊΡΡΡΠΈΡ ΡΠ΄Π°Π»ΡΡΡΡΡ Π²ΡΠ΅ Π²ΡΠΏΠΈΡΠ°ΡΡΠΈΠ΅ ΡΠ»Π΅ΠΌΠ΅Π½ΡΡ.
- ΠΡΠΎΠ²Π΅ΡΠΊΠ° Π½Π°Π΄Π΅ΠΆΠ½ΠΎΡΡΠΈ ΠΏΠΎΠ²Π΅ΡΡ Π½ΠΎΡΡΠΈ, Π»ΠΈΠΊΠ²ΠΈΠ΄Π°ΡΠΈΡ Π΄Π΅ΡΠ΅ΠΊΡΠΎΠ².
- Π©Π΅Π»ΠΈ, ΡΡΠ΅ΡΠΈΠ½Ρ ΡΠ»Π΅Π΄ΡΠ΅Ρ ΠΎΠ±ΡΠ°Π±ΠΎΡΠ°ΡΡ Π³ΡΡΠ½ΡΠΎΠ²ΠΊΠΎΠΉ.
- ΠΠΎΡΠ»Π΅ ΡΡΠΎΠ³ΠΎ ΠΏΠΎΠ²Π΅ΡΡ Π½ΠΎΡΡΡ ΡΠ»Π΅Π΄ΡΠ΅Ρ ΠΏΡΠΎΠΌΠ°Π·Π°ΡΡ ΡΠΏΠ°ΡΠ»Π΅Π²ΠΊΠΎΠΉ.
- ΠΠ°ΡΡΠΆΠ½Π°Ρ ΠΎΡΠ΄Π΅Π»ΠΊΠ° ΡΡΠ΅Π±ΡΠ΅Ρ Π΄ΠΎΠ±Π°Π²ΠΎΡΠ½ΠΎΠΉ Π³Π΅ΡΠΌΠ΅ΡΠΈΠ·Π°ΡΠΈΠΈ. ΠΠ΅ΡΠΌΠ΅ΡΠΈΠΊ Π½ΡΠΆΠ½ΠΎ Π½Π°Π½Π΅ΡΡΠΈ Π½Π° Π²ΡΡ ΠΏΠΎΠ²Π΅ΡΡ Π½ΠΎΡΡΡ ΠΌΠΎΠ½ΡΠ°ΠΆΠ½ΠΎΠ³ΠΎ ΡΠ²Π° ΠΈ ΡΠ°ΡΡΡ ΡΠΌΠ΅ΠΆΠ½ΠΎΠΉ ΡΡΠ΅Π½Ρ.
ΠΠ°ΡΡΠΆΠ½ΡΠΉ ΠΎΡΠΊΠΎΡ ΡΠ²ΠΎΠΈΠΌΠΈ ΡΡΠΊΠ°ΠΌΠΈ (Π²ΠΈΠ΄Π΅ΠΎ)
ΠΠΎΠΊΡΡΠΉ ΡΠΏΠΎΡΠΎΠ± ΠΎΡΠ΄Π΅Π»ΠΊΠΈ
ΠΡΠ° Π²Π°ΡΠΈΠ°ΡΠΈΡ ΠΎΠ±Π»ΠΈΡΠΎΠ²ΠΊΠΈ ΡΠ²Π»ΡΠ΅ΡΡΡ ΡΠ°ΠΌΡΠΌ ΡΡΠ°Π΄ΠΈΡΠΈΠΎΠ½Π½ΡΠΌ ΠΈ ΡΠΊΠΎΠ½ΠΎΠΌΠΈΡΠ½ΡΠΌ Π²Π°ΡΠΈΠ°Π½ΡΠΎΠΌ. ΠΠ΅Π·Π°ΠΌΡΡΠ»ΠΎΠ²Π°ΡΠΎΡΡΡ ΠΈ ΠΏΡΠΎΡΡΠΎΡΠ° ΡΡΠΎΠ³ΠΎ ΡΠΏΠΎΡΠΎΠ±Π° Π΄Π°Π΅Ρ Π²ΠΎΠ·ΠΌΠΎΠΆΠ½ΠΎΡΡΡ ΠΎΡΡΡΡΠΊΠ°ΡΡΡΠΈΡΡ ΠΈ ΠΏΠΎΠΊΡΠ°ΡΠΈΡΡ ΠΎΡΠΊΠΎΡΡ ΡΠ°ΠΌΠΎΡΡΠΎΡΡΠ΅Π»ΡΠ½ΠΎ. Π§ΡΠΎΠ±Ρ ΠΎΡΠ΄Π΅Π»Π°ΡΡ ΠΏΠΎΠ²Π΅ΡΡ Π½ΠΎΡΡΡ, Π½Π΅ΠΎΠ±Ρ ΠΎΠ΄ΠΈΠΌΠΎ ΠΏΡΠΈΠ³ΠΎΡΠΎΠ²ΠΈΡΡ ΡΡΡ ΡΡ ΡΠΌΠ΅ΡΡ Π½Π° Π±Π°Π·Π΅ ΡΠ΅ΠΌΠ΅Π½ΡΠ° Π»ΠΈΠ±ΠΎ Π³ΠΈΠΏΡΠ°. Π‘Π»Π΅Π΄ΡΠ΅Ρ ΡΡΠ΅ΡΡΡ, ΡΡΠΎ ΡΠ°ΠΊΠΎΠΉ Π²ΠΈΠ΄ ΡΠ°Π±ΠΎΡΡ ΠΎΡΠ»ΠΈΡΠ°Π΅ΡΡΡ Π΄Π»ΠΈΡΠ΅Π»ΡΠ½ΠΎΡΡΡΡ ΠΏΡΠΎΠΈΠ·Π²ΠΎΠ΄ΠΈΠΌΡΡ ΠΌΠ°Π½ΠΈΠΏΡΠ»ΡΡΠΈΠΉ. Π ΡΠ°ΠΊΠΆΠ΅ Β«ΡΡΠ±ΡΒ» Π½ΡΠΆΠ½ΠΎ ΠΏΠ΅ΡΠΈΠΎΠ΄ΠΈΡΠ΅ΡΠΊΠΈ ΠΊΡΠ°ΡΠΈΡΡ.
ΠΠ΅ΡΠ΅Π΄ ΡΠ΅ΠΌ, ΠΊΠ°ΠΊ ΡΡΡΠΊΠ°ΡΡΡΠΈΡΡ Π²Π½Π΅ΡΠ½ΠΈΠ΅ ΡΡΠ΅Π½Ρ, ΠΈΡ ΡΠ»Π΅Π΄ΡΠ΅Ρ ΠΏΠΎΠ΄Π³ΠΎΡΠΎΠ²ΠΈΡΡ. ΠΠΎΠ΄Π³ΠΎΡΠΎΠ²ΠΊΠ° Π·Π°ΠΊΠ»ΡΡΠ°Π΅ΡΡΡ Π² ΠΎΡΠΈΡΠ΅Π½ΠΈΠΈ ΠΎΡ Π³ΡΡΠ·ΠΈ, Π΄Π΅ΡΠ΅ΠΊΡΠΎΠ², ΠΈΠ·Π»ΠΈΡΠΊΠ° ΠΏΠ΅Π½Ρ. Π§ΡΠΎΠ±Ρ ΠΎΠ±Π΅Π·ΠΎΠΏΠ°ΡΠΈΡΡ ΠΎΠΊΠ½ΠΎ, ΡΠ΅ΠΊΠΎΠΌΠ΅Π½Π΄ΡΠ΅ΡΡΡ ΠΊΠΎΠ½ΡΡΡΡΠΊΡΠΈΠΈ ΠΏΡΠΈΠΊΡΡΡΡ ΠΌΠ°Π»ΡΡΠ½ΡΠΌ ΡΠΊΠΎΡΡΠ΅ΠΌ. ΠΠ΅Π»Π°ΡΡ ΠΎΡΡΡΠΊΠ°ΡΡΡΠΈΠ²Π°Π½ΠΈΠ΅ ΠΎΡΠΊΠΎΡΠΎΠ² ΡΠ»Π΅Π΄ΡΠ΅Ρ ΠΏΠΎΡΡΠ°ΠΏΠ½ΠΎ:
- ΠΠ΅ΡΠ²ΡΠΌ Π΄Π΅Π»ΠΎΠΌ ΡΠ»Π΅Π΄ΡΠ΅Ρ ΡΡΡΠ°Π½Π°Π²Π»ΠΈΠ²Π°ΡΡ ΠΌΠ°ΡΡΠΊΠΈ Π½Π° Π΄ΠΈΡΡΠ°Π½ΡΠΈΠΈ Π΄ΠΎ 5 ΡΠΌ ΠΎΡ ΠΊΠ°ΡΠΊΠ°ΡΠ° ΠΎΠΊΠ½Π°, ΡΠΈΠΊΡΠ°ΡΠΈΡ ΠΏΡΠΎΠΈΠ·Π²ΠΎΠ΄ΠΈΡΡΡ Π³Π²ΠΎΠ·Π΄ΡΠΌΠΈ.
- Π’ΠΎΠ»ΡΠΈΠ½Π° ΡΡΡΠΊΠ°ΡΡΡΠ½ΠΎΠ³ΠΎ ΠΏΠ»Π°ΡΡΠ° Π΄ΠΎΠ»ΠΆΠ½Π° Π·Π°ΠΊΡΡΡΡ ΠΎΠΊΠ½ΠΎ Π½Π° 1 ΡΠΌ. ΠΠ±ΡΠ΅ΠΏΡΠΈΠ½ΡΡΠΎΠ΅ ΡΡΠΎΠ»ΡΠ΅Π½ΠΈΠ΅ ΡΠΎΡΡΠ°Π²Π»ΡΠ΅Ρ 2 ΡΠΌ. Π£Π³ΠΎΠ»ΡΠ½ΠΈΠΊΠΎΠΌ ΡΠ»Π΅Π΄ΡΠ΅Ρ Π²ΡΡΠΎΠ²Π½ΡΡΡ ΡΠ³Π»Ρ.
- Π£Π΄ΠΎΡΡΠΎΠ²Π΅ΡΠΈΠ²ΡΠΈΡΡ Π² ΠΎΡΠΈΡΠ΅Π½Π½ΠΎΡΡΠΈ ΠΏΡΠΎΠ΅ΠΌΠ° Π²ΠΎΠ·ΠΌΠΎΠΆΠ½ΠΎ Π½Π°Π½Π΅ΡΡΠΈ Π³ΡΡΠ½ΡΠΎΠ²ΠΊΡ. ΠΡΡΠ½ΡΠΎΠ²Π°Π½ΠΈΠ΅ ΠΏΡΠ΅Π΄Π½Π°Π·Π½Π°ΡΠ΅Π½ΠΎ Π΄Π»Ρ ΡΠ»ΡΡΡΠ΅Π½ΠΈΡ Π°Π΄Π³Π΅Π·ΠΈΠΈ ΡΡΡΠΊΠ°ΡΡΡΠΊΠΈ Ρ ΠΎΡΠ½ΠΎΠ²Π°Π½ΠΈΠ΅ΠΌ.
Π¨ΠΏΠ°ΠΊΠ»Π΅Π²Π°Π½ΠΈΠ΅ Π½Π°ΡΡΠΆΠ½ΡΡ
ΠΎΡΠΊΠΎΡΠΎΠ²- Π¦Π΅ΠΌΠ΅Π½ΡΠ½ΠΎ-Π³ΠΈΠΏΡΠΎΠ²ΡΠΉ ΡΠ°ΡΡΠ²ΠΎΡ ΡΠ»Π΅Π΄ΡΠ΅Ρ Π½Π°Π½Π΅ΡΡΠΈ ΠΏΠΎ ΠΌΠ°ΡΡΠΊΠ°ΠΌ ΠΈ ΡΠ°Π·Π³Π»Π°Π΄ΠΈΡΡ ΡΠΏΠ°ΡΠ΅Π»Π΅ΠΌ. ΠΠ°Π½ΠΈΠΏΡΠ»ΡΡΠΈΠΈ Π½ΡΠΆΠ½ΠΎ ΠΏΡΠΎΠΈΠ·Π²ΠΎΠ΄ΠΈΡΡ ΡΠ½ΠΈΠ·Ρ Π²Π²Π΅ΡΡ .
- ΠΠΎΡΠ»Π΅ ΠΏΡΠΎΡΡΡ Π°Π½ΠΈΡ ΠΏΠ΅ΡΠ²ΠΎΠ³ΠΎ ΠΏΠ»Π°ΡΡΠ° ΠΌΠ°ΡΡΠΊΠΈ ΡΠ»Π΅Π΄ΡΠ΅Ρ ΡΠ΄Π°Π»ΠΈΡΡ, Π° ΠΌΠ΅ΡΡΠ° ΡΠ°ΡΠΏΠΎΠ»ΠΎΠΆΠ΅Π½ΠΈΡ Π·Π°ΠΌΠ°Π·Π°ΡΡ ΠΈ Π²ΡΡΠΎΠ²Π½ΡΡΡ.
- 1 ΠΏΠ»Π°ΡΡ ΡΡΡΠΊΠ°ΡΡΡΠΊΠΈ Π½Π΅ Π΄ΠΎΠ»ΠΆΠ΅Π½ ΠΏΡΠ΅Π²ΡΡΠ°ΡΡ 7 ΠΌΠΌ. Π‘Π»Π΅Π΄ΡΠ΅Ρ ΡΡΠΈΡΡΠ²Π°ΡΡ, ΡΡΠΎ ΠΏΡΠ°Π²ΠΈΠ»ΡΠ½ΠΎ Π½Π°Π½ΠΎΡΠΈΡΡ Π½ΠΎΠ²ΡΠΉ ΠΏΠ»Π°ΡΡ ΡΡΡΠΊΠ°ΡΡΡΠΊΠΈ Π»ΠΈΡΡ Π½Π° ΠΏΡΠΎΡΠΎΡ ΡΠΈΠΉ ΠΏΡΠ΅Π΄ΡΠ΄ΡΡΠΈΠΉ ΡΠ»ΠΎΠΉ. Π’Π°ΠΊΠΆΠ΅ Π½Π΅ ΡΠ»Π΅Π΄ΡΠ΅Ρ Π·Π°Π±ΡΠ²Π°ΡΡ ΠΎΠ± ΡΠ³Π»ΠΎΠ²ΠΎΠΌ Π²ΡΡΠ°Π²Π½ΠΈΠ²Π°Π½ΠΈΠΈ.
- ΠΠΎΡΠ»Π΅ ΡΡ Π²Π°ΡΡΠ²Π°Π½ΠΈΡ ΡΡΡΠΊΠ°ΡΡΡΠΊΠΈ Π΄Π΅ΡΠ΅Π²ΡΠ½Π½ΡΠΉ ΠΊΠ°ΡΠΊΠ°Ρ ΡΠ±ΠΈΡΠ°Π΅ΡΡΡ, Π° Π΄Π΅ΡΠ΅ΠΊΡΡ Π·Π°ΠΌΠ°Π·Π°ΡΡ ΠΈ ΡΠ°Π·Π³Π»Π°Π΄ΠΈΡΡ.
- ΠΠΎΠΊΡΠΎΠΉ ΡΡΡΠΏΠΊΠΎΠΉ ΠΌΠΎΠΆΠ½ΠΎ Π½Π΅ΠΌΠ½ΠΎΠΆΠΊΠΎ ΡΠΌΠΎΡΠΈΡΡ ΠΏΠΎΠΊΡΡΡΠΈΠ΅ ΠΈ ΡΠ΄Π°Π»ΠΈΡΡ Π²ΡΠ΅ ΠΏΠΎΠ³ΡΠ΅ΡΠ½ΠΎΡΡΠΈ ΠΏΡΠΈ ΠΏΠΎΠΌΠΎΡΠΈ ΡΠ΅ΡΠΊΠΈ.
- ΠΠΎΡΠ»Π΅ ΠΎΡΠ½ΠΎΠ²Π°ΡΠ΅Π»ΡΠ½ΠΎΠ³ΠΎ ΠΏΡΠΎΡΡΡΠΈΠ²Π°Π½ΠΈΡ Π½Π°Π½ΠΎΡΠΈΡΡΡ ΠΏΠΎΠ±Π΅Π»ΠΊΠ° Π»ΠΈΠ±ΠΎ ΠΊΡΠ°ΡΠΊΠ°.
Π Ρ ΠΎΠ΄Π΅ Π²ΡΠΏΠΎΠ»Π½Π΅Π½ΠΈΡ ΡΠ°Π±ΠΎΡ ΠΎΠΊΠ½ΠΎ Π΄ΠΎΠ»ΠΆΠ½ΠΎ Π±ΡΡΡ Π·Π°ΠΊΡΡΡΡΠΌ. ΠΠΎΡΠΊΠΎΠ»ΡΠΊΡ ΠΏΡΠΈ ΠΏΡΠΎΠ½ΠΈΠΊΠ½ΠΎΠ²Π΅Π½ΠΈΠΈ ΡΠΌΠ΅ΡΠΈ Π² ΡΡΡΠ½ΠΈΡΡΡΡ ΠΌΠΎΠΆΠ΅Ρ Π½Π°ΡΡΡΠΈΡΡΡΡ ΡΡΠ½ΠΊΡΠΈΠΎΠ½Π°Π»ΡΠ½ΠΎΡΡΡ. Π―Π²Π½ΡΠΌ Π½Π΅Π³Π°ΡΠΈΠ²Π½ΡΠΌ ΡΠ²ΠΎΠΉΡΡΠ²ΠΎΠΌ ΠΎΡΠ΄Π΅Π»ΠΎΡΠ½ΠΎΠ³ΠΎ ΡΠΏΠΎΡΠΎΠ±Π° β Π½Π΅ ΡΠΎΠ²ΠΌΠ΅ΡΠ΅Π½ΠΈΠ΅ ΡΠ΅ΠΌΠ΅Π½ΡΠ½ΠΎΠ³ΠΎ ΡΠ°ΡΡΠ²ΠΎΡΠ° Ρ ΠΠΠ₯ ΠΏΡΠΎΡΠΈΠ»Π΅ΠΌ. ΠΡΠΎ ΡΠΏΠΎΡΠΎΠ±ΡΡΠ²ΡΠ΅Ρ ΠΏΠΎΡΠ²Π»Π΅Π½ΠΈΡ Π΄ΡΡΡ ΠΌΠ΅ΠΆΠ΄Ρ ΠΎΡΠΊΠΎΡΠΎΠΌ ΠΈ ΠΊΠ°ΡΠΊΠ°ΡΠ½ΠΎΠΉ ΠΎΡΠ½ΠΎΠ²ΠΎΠΉ. Π‘Π»Π΅Π΄ΠΎΠ²Π°ΡΠ΅Π»ΡΠ½ΠΎ, ΠΎΠ±ΡΠ°Π·ΠΎΠ²Π°Π²ΡΠΈΠ΅ΡΡ Π·Π°Π·ΠΎΡΡ ΡΠ»Π΅Π΄ΡΠ΅Ρ Π·Π°ΠΌΠ°Π·ΡΠ²Π°ΡΡ Π³Π΅ΡΠΌΠ΅ΡΠΈΠΊΠΎΠΌ Π½Π° ΠΎΡΠ½ΠΎΠ²Π΅ ΡΠΈΠ»ΠΈΠΊΠΎΠ½Π°.
ΠΡΠΈΠΌΠ΅Π½Π΅Π½ΠΈΠ΅ ΠΆΠ΅Π»Π΅Π·Π½ΡΡ ΠΊΠΎΠ½ΡΡΡΡΠΊΡΠΈΠΉ
ΠΠ΅ΡΠ°Π»Π»ΠΈΡΠ΅ΡΠΊΠΈΠ΅ Π½Π°ΡΡΠΆΠ½ΡΠ΅ ΠΎΠΊΠΎΠ½Π½ΡΠ΅ ΠΎΡΠΊΠΎΡΡΠΠΎΡΡΠ°ΡΠΎΡΠ½ΠΎ ΡΠ°ΡΡΠΎ Π½Π° Π΄Π°ΡΠ°Ρ ΠΈ Π² ΡΠ°ΡΡΠ½ΡΡ Π·Π°Π³ΠΎΡΠΎΠ΄Π½ΡΡ Π΄ΠΎΠΌΠ°Ρ ΠΈΡΠΏΠΎΠ»ΡΠ·ΡΠ΅ΡΡΡ Π²Π½Π΅ΡΠ½ΡΡ ΠΎΠ±Π»ΠΈΡΠΎΠ²ΠΊΠ° ΠΎΡΠΊΠΎΡΠΎΠ² ΠΏΡΠΈ ΠΏΠΎΠΌΠΎΡΠΈ ΠΎΡΠΈΠ½ΠΊΠΎΠ²Π°Π½Π½ΡΡ Π»ΠΈΡΡΠΎΠ². ΠΠ΅ΡΠ°Π»Π» ΠΈΠΌΠ΅Π΅Ρ ΠΊΠ°ΠΊ ΠΏΠΎΠ»ΠΎΠΆΠΈΡΠ΅Π»ΡΠ½ΡΠ΅, ΡΠ°ΠΊ ΠΈ ΠΎΡΡΠΈΡΠ°ΡΠ΅Π»ΡΠ½ΡΠ΅ ΡΠ²ΠΎΠΉΡΡΠ²Π°. Π ΠΏΠΎΠ»ΠΎΠΆΠΈΡΠ΅Π»ΡΠ½ΡΠΌ ΡΠ²ΠΎΠΉΡΡΠ²Π°ΠΌ ΠΌΠ°ΡΠ΅ΡΠΈΠ°Π»Π° ΠΌΠΎΠΆΠ½ΠΎ ΠΏΡΠΈΡΠΈΡΠ»ΠΈΡΡ:
- ΠΠ΅ΡΠ°Π»Π» Π½Π΅ Π±ΠΎΠΈΡΡΡ Π°ΡΠΌΠΎΡΡΠ΅ΡΠ½ΡΡ Π²Π»ΠΈΡΠ½ΠΈΠΉ.
- ΠΡΠΎΡΡΠΎΡΠ° ΡΠΊΡΠΏΠ»ΡΠ°ΡΠ°ΡΠΈΠΈ.
- Π€ΠΎΡΠΌΠ° ΠΊΠΎΠ½ΡΡΡΡΠΊΡΠΈΠΈ ΡΠΎΡΠΌΠΈΡΡΠ΅Ρ Π³ΡΠΎΠΌΠΎΠ·Π΄ΠΊΡΡ ΡΠ°ΠΌΠΊΡ.
Π ΠΌΠΈΠ½ΡΡΠ°ΠΌ ΠΌΠΎΠΆΠ½ΠΎ ΠΏΡΠΈΡΠΈΡΠ»ΠΈΡΡ Π»ΠΈΡΡ ΠΏΠΎΡΡΠ΅Π±Π½ΠΎΡΡΠΈ ΠΏΡΠΈΠΌΠ΅Π½Π΅Π½ΠΈΡ ΡΠΏΠ»ΠΎΡΠ½ΠΈΡΠ΅Π»ΡΠ½ΠΎΠΉ Π»Π΅Π½ΡΡ, ΠΊΠΎΡΠΎΡΠ°Ρ ΠΈΠ³ΡΠ°Π΅Ρ ΡΡΠΌΠΎΠΈΠ·ΠΎΠ»ΡΡΠΈΠΎΠ½Π½ΡΡ ΡΡΠ½ΠΊΡΠΈΡ. ΠΠ±ΡΠΈΡΡ Π²Π½Π΅ΡΠ½ΠΈΠ΅ ΠΎΡΠΊΠΎΡΡ ΠΌΠ΅ΡΠ°Π»Π»ΠΎΠΌ ΡΠΎΠ±ΡΡΠ²Π΅Π½Π½ΠΎΡΡΡΠ½ΠΎ ΠΌΠΎΠΆΠ½ΠΎ, Π½ΠΎ ΡΠ»Π΅Π΄ΡΠ΅Ρ ΡΡΠ΅ΡΡΡ, ΡΡΠΎ ΡΠ°ΠΊΠ°Ρ ΠΏΡΠΎΡΠ΅Π΄ΡΡΠ° ΡΡΠ΅Π±ΡΠ΅Ρ Π°ΠΊΠΊΡΡΠ°ΡΠ½ΠΎΡΡΠΈ ΠΈ Π²Π½ΠΈΠΌΠ°ΡΠ΅Π»ΡΠ½ΠΎΡΡΠΈ. ΠΠ΅Π·Π°Π²ΠΈΡΠΈΠΌΠΎ ΠΎΡ Π²ΡΠ΅ΠΌΠ΅Π½ΠΈ Π³ΠΎΠ΄Π°, ΠΎΠ±Π»ΠΈΡΠ΅Π²Π°ΡΡ ΠΎΡΠΊΠΎΡΡ ΡΠ»Π΅Π΄ΡΠ΅Ρ ΠΊΠ°ΠΊ ΠΌΠΎΠΆΠ½ΠΎ Π±ΡΡΡΡΠ΅Π΅.
ΠΠΎΡΠΊΠΎΠ»ΡΠΊΡ Π½Π΅ΠΏΡΠ°Π²ΠΈΠ»ΡΠ½ΡΠΉ ΠΏΠΎΠ΄Ρ ΠΎΠ΄ ΠΊ ΡΡΠΎΠΌΡ Π²ΠΎΠΏΡΠΎΡΡ ΠΏΡΠΈΠ²ΠΎΠ΄ΠΈΡ ΠΊ ΡΠΎΠΌΡ, ΡΡΠΎ ΠΏΠ΅Π½Π° ΡΠ°Π·ΡΡΡΠ°Π΅ΡΡΡ, Π° ΠΎΠ±ΡΠ°Π·ΠΎΠ²Π°Π²ΡΠΈΠ΅ΡΡ ΡΡΠ΅ΡΠΈΠ½ΠΊΠΈ Π²Π±ΠΈΡΠ°ΡΡ Π²Π»Π°Π³Ρ. Π‘Π»Π΅Π΄ΠΎΠ²Π°ΡΠ΅Π»ΡΠ½ΠΎ, Π½ΡΠΆΠ½ΠΎ ΠΏΠ΅ΡΠ΅Π΄ ΠΎΡΠ΄Π΅Π»ΠΎΡΠ½ΡΠΌΠΈ ΡΠ°Π±ΠΎΡΠ°ΠΌΠΈ ΠΈΠ·ΡΡΠΈΡΡ, ΠΊΠ°ΠΊ ΠΏΡΠ°Π²ΠΈΠ»ΡΠ½ΠΎ ΡΠ΄Π΅Π»Π°ΡΡ ΠΌΠ΅ΡΠ°Π»Π»ΠΈΡΠ΅ΡΠΊΠΈΠ΅ ΠΎΡΠΊΠΎΡΡ Π½Π° ΠΎΠΊΠ½Π°Ρ ΡΠ½Π°ΡΡΠΆΠΈ. Π’Π΅Ρ Π½ΠΎΠ»ΠΎΠ³ΠΈΡ Π²ΠΊΠ»ΡΡΠ°Π΅Ρ ΡΠ»Π΅Π΄ΡΡΡΠΈΠ΅ ΡΡΠ°ΠΏΡ:
- ΠΡΠΎΠ²Π΅Π΄Π΅Π½ΠΈΠ΅ ΡΡΠ°ΡΠ΅Π»ΡΠ½ΡΡ Π·Π°ΠΌΠ΅ΡΠΎΠ².
- ΠΠΎΠ΄Π³ΠΎΡΠΎΠ²ΠΊΠ° ΠΏΠΎΠ²Π΅ΡΡ Π½ΠΎΡΡΠΈ.
- ΠΡΠΎΡΠ΅ΡΡ ΠΌΠΎΠ½ΡΠ°ΠΆΠ°.
ΠΠ°ΠΌΠ΅Ρ ΠΎΡΠ½ΠΎΠ²Ρ ΠΎΠΊΠΎΠ½Π½ΠΎΠ³ΠΎ ΠΎΡΠΊΠΎΡΠ°ΠΠ΅ΠΎΠ±Ρ ΠΎΠ΄ΠΈΠΌΠΎ ΡΠΊΡΡΠΏΡΠ»Π΅Π·Π½ΠΎ ΠΎΡΠ½Π΅ΡΡΠΈΡΡ ΠΊ ΠΏΡΠΎΠ²Π΅Π΄Π΅Π½ΠΈΡ Π·Π°ΠΌΠ΅ΡΠΎΠ². ΠΠΎΡΠΊΠΎΠ»ΡΠΊΡ Π½Π΅ΠΏΡΠ°Π²ΠΈΠ»ΡΠ½ΠΎ ΠΏΡΠΎΠΈΠ·Π²Π΅Π΄Π΅Π½Π½ΡΠ΅ ΡΠ°ΡΡΠ΅ΡΡ ΠΌΠΎΠ³ΡΡ ΠΏΡΠΈΠ²Π΅ΡΡΠΈ ΠΊ ΡΠΎΠΌΡ, ΡΡΠΎ Π²ΠΎΠ·Π½ΠΈΠΊΠ½ΡΡ ΠΏΡΠΎΠ±Π»Π΅ΠΌΡ Ρ ΡΠ°Π·ΠΌΠ΅ΡΠ°ΠΌΠΈ Π·Π°Π³ΠΎΡΠΎΠ²ΠΎΠΊ (ΠΌΠΎΠ³ΡΡ Π±ΡΡΡ Π±ΠΎΠ»ΡΡΠ΅ Π»ΠΈΠ±ΠΎ ΠΌΠ΅Π½ΡΡΠ΅ Π½ΡΠΆΠ½ΡΡ ΠΏΠΎΠΊΠ°Π·Π°ΡΠ΅Π»Π΅ΠΉ). ΠΠΊΠΎΠ½Π½ΡΠ΅ ΠΏΡΠΎΠ΅ΠΌΡ, ΠΊΠΈΡΠΏΠΈΡΠ½ΡΠ΅ ΡΡΠ΅Π½Ρ, Π»ΠΈΠ±ΠΎ ΠΏΠ»ΠΈΡΡ ΠΈΠ· Π±Π΅ΡΠΎΠ½Π°, ΡΡΠ΅Π±ΡΡΡ ΡΠΊΡΡΠΏΡΠ»Π΅Π·Π½ΠΎΠΉ ΠΏΠΎΠ΄Π³ΠΎΡΠΎΠ²ΠΊΠΈ. ΠΠΎΡΠΊΠΎΠ»ΡΠΊΡ ΡΠ°ΠΊΠΎΠ³ΠΎ ΡΠΎΠ΄Π° ΡΡΡΠΎΠ΅Π½ΠΈΡ ΠΏΠΎΠ΄Π²Π΅ΡΠΆΠ΅Π½Ρ ΠΎΡΡΠΏΠ°Π½ΠΈΡΠΌ ΠΈ ΠΎΠ±ΡΠ°Π·ΠΎΠ²Π°Π½ΠΈΡ ΡΡΠ΅ΡΠΈΠ½. Π‘Π»Π΅Π΄ΠΎΠ²Π°ΡΠ΅Π»ΡΠ½ΠΎ, Π½Π΅ΠΎΠ±Ρ ΠΎΠ΄ΠΈΠΌΠΎ ΠΏΡΠΎΠΈΠ·Π²Π΅ΡΡΠΈ ΡΠ»Π΅Π΄ΡΡΡΠΈΠ΅ ΠΌΠ°Π½ΠΈΠΏΡΠ»ΡΡΠΈΠΈ:
- ΠΠΈΠΊΠ²ΠΈΠ΄Π°ΡΠΈΡ ΠΈΠ·Π»ΠΈΡΠΊΠΎΠ² ΠΌΠΎΠ½ΡΠ°ΠΆΠ½ΠΎΠΉ ΠΏΠ΅Π½Ρ.
- ΠΡΠΈ Π½Π°Π»ΠΈΡΠΈΠΈ ΡΠΊΠΎΠ»ΠΎΠ², ΡΠ΅Π»Π΅ΠΉ ΠΏΡΠΎΠΈΠ·Π²ΠΎΠ΄ΠΈΡΡΡ Π·Π°ΠΌΠ°Π·ΡΠ²Π°Π½ΠΈΠ΅ ΡΠΏΠ°ΠΊΠ»Π΅Π²ΠΊΠΎΠΉ.
- ΠΠΎΠ²Π΅ΡΡ Π½ΠΎΡΡΡ ΠΈ ΡΠ²Ρ ΠΎΠ±ΡΠ°Π±Π°ΡΡΠ²Π°ΡΡΡΡ Π³Π΅ΡΠΌΠ΅ΡΠΈΠΊΠΎΠΌ.
ΠΠ΅ΡΠΌΠ΅ΡΠΈΠ·Π°ΡΠΈΡ ΠΎΠΊΠ½Π°ΠΠΎΡΠ»Π΅ Π²ΡΡΡΡ Π°Π½ΠΈΡ Π½Π°Π½Π΅ΡΠ΅Π½Π½ΡΡ ΠΌΠ°ΡΠ΅ΡΠΈΠ°Π»ΠΎΠΌ ΠΌΠΎΠΆΠ½ΠΎ ΠΏΡΠΈΡΡΡΠΏΠ°ΡΡ ΠΊ ΡΡΡΠ°Π½ΠΎΠ²ΠΊΠ΅ ΠΎΡΠΊΠΎΡΠΎΠ². ΠΠ»Π³ΠΎΡΠΈΡΠΌ ΠΏΡΠΎΠΈΠ·Π²Π΅Π΄Π΅Π½ΠΈΡ:
- ΠΡΠ΅ ΡΠ°Π·ΠΌΠ΅ΡΡ ΠΏΠ΅ΡΠ΅Π½ΠΎΡΡΡΡΡ Π½Π° ΠΏΠ°Π½Π΅Π»Ρ ΠΈ Π²ΡΡΠ΅Π·Π°ΡΡΡΡ ΠΏΡΠΈ ΠΏΠΎΠΌΠΎΡΠΈ Π½ΠΎΠΆΠ½ΠΈΡ ΠΏΠΎ ΠΌΠ΅ΡΠ°Π»Π»Ρ.
- ΠΠ±Π»ΠΈΡΠΎΠ²ΡΠ²Π°ΡΡ ΠΎΡΠΊΠΎΡΡ ΡΠ»Π΅Π΄ΡΠ΅Ρ Ρ ΠΎΡΠ»ΠΈΠ²Π°. ΠΡΠΎΡ ΡΠ»Π΅ΠΌΠ΅Π½Ρ Π²ΡΡΠ΅Π·Π°Π΅ΡΡΡ ΡΠΎΠ³Π»Π°ΡΠ½ΠΎ ΠΎΠΊΠΎΠ½Π½ΠΎΠΉ ΡΠ°ΠΌΠ΅. ΠΠ°ΡΡΠΆΠ½Π°Ρ ΡΠ°ΡΡΡ Π²ΡΡΠ΅Π·Π°Π΅ΡΡΡ Π² ΡΠΎΠΎΡΠ²Π΅ΡΡΡΠ²ΠΈΠΈ Ρ ΠΏΡΠ΅Π΄ΠΎΠΏΡΠ΅Π΄Π΅Π»Π΅Π½Π½ΡΠΌΠΈ Π²Π΅Π»ΠΈΡΠΈΠ½Π°ΠΌΠΈ ΠΏΡΠΎΠ΅ΠΌΠ° Ρ ΡΡΠ΅ΡΠΎΠΌ ΠΏΡΠΈΠΏΡΡΠΊΠ° Π½Π° ΡΡΠ΅Π½Ρ. ΠΠΎΠΊΠΎΠ²ΡΠ΅ ΡΠ°ΡΡΠΈ Π΄ΠΎΠ»ΠΆΠ½Ρ ΠΈΠΌΠ΅ΡΡ ΠΏΡΠΈΠΏΡΡΠΊ 1 ΡΠΌ.
- Π€ΠΈΠΊΡΠ°ΡΠΈΡ ΠΎΡΠ»ΠΈΠ²Π° ΠΊ ΠΊΠ°ΡΠΊΠ°ΡΡ ΠΏΡΠΎΠΈΠ·Π²ΠΎΠ΄ΠΈΡΡΡ ΡΠ°ΠΌΠΎΡΠ΅Π·Π°ΠΌΠΈ.
- ΠΡΠΎΠΈΠ·Π²ΠΎΠ΄ΠΈΡΡΡ ΠΌΠΎΠ½ΡΠ°ΠΆ Π²Π΅ΡΡΠΈΠΊΠ°Π»ΡΠ½ΡΡ ΡΠ»Π΅ΠΌΠ΅Π½ΡΠΎΠ² Π½Π° Π±ΠΎΠΊΠΎΠ²ΡΠ΅ ΡΡΠΎΡΠΎΠ½Ρ. ΠΡΠ΅ΠΏΠ»Π΅Π½ΠΈΠ΅ ΠΏΡΠΎΠΈΠ·Π²ΠΎΠ΄ΠΈΡΡΡ ΡΡΡΡΠΏΠ°ΠΌΠΈ.
- Π ΠΏΠΎΡΠ»Π΅Π΄Π½ΡΡ ΠΎΡΠ΅ΡΠ΅Π΄Ρ Π½ΡΠΆΠ½ΠΎ ΡΠ΄Π΅Π»Π°ΡΡ ΡΠΈΠΊΡΠΈΡΠΎΠ²Π°Π½ΠΈΠ΅ Π²Π΅ΡΡ Π½Π΅Π³ΠΎ ΡΠ»Π΅ΠΌΠ΅Π½ΡΠ° ΡΠ°ΠΌΠΎΡΠ΅Π·Π°ΠΌΠΈ.
- ΠΠ°Π½Π΅ΡΠ΅Π½ΠΈΠ΅ Π³Π΅ΡΠΌΠ΅ΡΠΈΠΊΠ° Π½Π° Π²ΡΠ΅ ΠΏΡΠΈΠ»Π΅Π³Π°ΡΡΠΈΠ΅ ΡΡΠ°ΡΡΠΊΠΈ ΠΊΠΎΠ½ΡΡΡΡΠΊΡΠΈΠΈ.
ΠΠ»Π°ΡΡΠΈΠΊΠΎΠ²ΡΠ΅ ΠΎΡΠΊΠΎΡΡ
ΠΠ°ΡΡΠΆΠ½ΡΠ΅ ΠΏΠ»Π°ΡΡΠΈΠΊΠΎΠ²ΡΠ΅ ΠΎΡΠΊΠΎΡΡΠΠΏΡΠ΅Π΄Π΅Π»ΡΡΡΡ, ΡΠ΅ΠΌ ΡΠ΄Π΅Π»Π°ΡΡ ΡΠ°ΠΌΠΎΡΡΠΎΡΡΠ΅Π»ΡΠ½ΠΎ ΠΎΡΠΊΠΎΡΡ Π½Π° ΠΎΠΊΠ½Π°Ρ ΡΠ½Π°ΡΡΠΆΠΈ, ΠΌΠ½ΠΎΠ³ΠΈΠ΅ ΠΎΡΠ΄Π°ΡΡ ΠΏΡΠ΅Π΄ΠΏΠΎΡΡΠ΅Π½ΠΈΠ΅ ΠΏΠ»Π°ΡΡΠΈΠΊΡ. ΠΠΎΠ½ΡΡΡΡΠΊΡΠΈΠΈ ΠΈΠ· ΠΏΠΎΠ»ΠΈΠΌΠ΅ΡΠ½ΡΡ ΠΌΠ°ΡΠ΅ΡΠΈΠ°Π»ΠΎΠ² ΡΠ°ΡΠΏΠΎΠ»Π°Π³Π°ΡΡ ΠΏΠΎΠ·ΠΈΡΠΈΠ²Π½ΡΠΌΠΈ ΠΈ ΠΎΡΡΠΈΡΠ°ΡΠ΅Π»ΡΠ½ΡΠΌΠΈ ΡΠ²ΠΎΠΉΡΡΠ²Π°ΠΌΠΈ. Π ΠΏΠΎΠ»ΠΎΠΆΠΈΡΠ΅Π»ΡΠ½ΡΠΌ ΠΏΡΠΈΡΠΈΡΠ»ΡΠ΅ΡΡΡ:
- ΠΠΎΠ»ΠΈΠΌΠ΅ΡΠ½ΡΠΉ ΠΌΠ°ΡΠ΅ΡΠΈΠ°Π», ΠΈΡΠΏΠΎΠ»ΡΠ·ΡΠ΅ΠΌΡΠΉ Π΄Π»Ρ ΠΈΠ·Π³ΠΎΡΠΎΠ²Π»Π΅Π½ΠΈΡ ΠΏΠ°Π½Π΅Π»Π΅ΠΉ, ΠΈΠΌΠ΅Π΅Ρ Π·Π²ΡΠΊΠΎ β ΠΈ ΡΠ΅ΠΏΠ»ΠΎΠΈΠ·ΠΎΠ»ΡΡΠΈΠΎΠ½Π½ΡΠΌΠΈ Ρ Π°ΡΠ°ΠΊΡΠ΅ΡΠΈΡΡΠΈΠΊΠ°ΠΌΠΈ. Π’Π°ΠΊΠΆΠ΅ ΡΠ»Π΅Π΄ΡΠ΅Ρ ΡΡΠ΅ΡΡΡ, ΡΡΠΎ ΡΡΡΠ°Π½ΠΎΠ²ΠΊΠ° ΡΠ°ΠΊΠΎΠ³ΠΎ ΡΠΎΠ΄Π° ΠΎΡΠΊΠΎΡΠΎΠ² ΠΏΠΎΠ·Π²ΠΎΠ»ΡΠ΅Ρ ΠΈΡΠΏΠΎΠ»ΡΠ·ΠΎΠ²Π°ΡΡ Π΄ΠΎΠ±Π°Π²ΠΎΡΠ½ΡΠΉ ΡΡΠ΅ΠΏΠ»ΠΈΡΠ΅Π»Ρ.
- ΠΡΠΊΠΎΡΡ ΠΈΠ· ΠΏΠ»Π°ΡΡΠΈΠΊΠ° ΡΡΡΠΎΠΉΡΠΈΠ²Ρ ΠΊ Π°ΡΠΌΠΎΡΡΠ΅ΡΠ½ΡΠΌ ΡΠ²Π»Π΅Π½ΠΈΡΠΌ.
- Π£ΡΡΠ°Π½ΠΎΠ²ΠΊΠ° ΠΎΡΠΊΠΎΡΠΎΠ² ΠΏΡΠΎΠ²ΠΎΠ΄ΠΈΡΡΡ Π±ΡΡΡΡΠΎ Π±Π΅Π· Π½Π°Π»ΠΈΡΠΈΡ ΡΡΡΠΎΠΈΡΠ΅Π»ΡΠ½ΠΎΠ³ΠΎ ΠΌΡΡΠΎΡΠ°.
- ΠΡΠΎΡΡΠΎΡΠ° ΡΠΊΡΠΏΠ»ΡΠ°ΡΠ°ΡΠΈΠΈ.
Π Π½Π΅Π΄ΠΎΡΡΠ°ΡΠΊΠ°ΠΌ ΠΌΠΎΠΆΠ½ΠΎ ΠΎΡΠ½Π΅ΡΡΠΈ:
- ΠΠ°ΡΠ΅ΡΠΈΠ°Π» Π΄ΠΎΠ²ΠΎΠ»ΡΠ½ΠΎ Π»Π΅Π³ΠΊΠΎ ΠΏΠΎΠ²ΡΠ΅Π΄ΠΈΡΡ.
- ΠΠ΅Ρ Π²ΠΎΠ·ΠΌΠΎΠΆΠ½ΠΎΡΡΠΈ ΡΠ°ΡΡΠΈΡΠ½ΠΎΠ³ΠΎ ΡΠ΅ΠΌΠΎΠ½ΡΠ°.
- ΠΠΎΡΡΠ°ΡΠΎΡΠ½ΠΎ ΡΠ»ΠΎΠΆΠ½ΠΎ ΠΏΠΎΠ΄ΠΎΠ³Π½Π°ΡΡ ΠΎΡΠΊΠΎΡ Π΅ΡΠ»ΠΈ ΡΡΠ°ΡΠΎΠ΅ ΠΏΠΎΠΊΡΡΡΠΈΠ΅ ΠΈΠΌΠ΅Π΅Ρ Π½Π΅ΡΠΎΠ²Π½ΠΎΡΡΠΈ.
Π‘Ρ
Π΅ΠΌΠ° Π·Π°Π΄Π΅Π»ΠΊΠΈ Π½Π°ΡΡΠΆΠ½ΡΡ
ΠΎΡΠΊΠΎΡΠΎΠ²ΠΡΠ°Π²ΠΈΠ»ΡΠ½ΡΠΉ Π°Π»Π³ΠΎΡΠΈΡΠΌ Π΄Π΅ΠΉΡΡΠ²ΠΈΠΉ:
- ΠΡΠΎΠ²Π΅Π΄Π΅Π½ΠΈΠ΅ Π·Π°ΠΌΠ΅ΡΠΎΠ².
- ΠΡΡΠ΅Π·ΠΊΠ° ΡΠ»Π΅ΠΌΠ΅Π½ΡΠΎΠ² Ρ ΠΏΠΎΠΌΠΎΡΡΡ ΠΏΠΈΠ»ΠΊΠΈ ΠΏΠΎ ΠΌΠ΅ΡΠ°Π»Π»Ρ. Π§ΡΠΎΠ±Ρ ΠΏΡΠ΅Π΄ΠΎΡΠ²ΡΠ°ΡΠΈΡΡ Π½Π΅ΠΏΠ»ΠΎΡΠ½ΠΎΠ΅ ΠΏΡΠΈΠ»Π΅Π³Π°Π½ΠΈΠ΅ ΡΠ»Π΅ΠΌΠ΅Π½ΡΠΎΠ² ΠΊΡΠ°Ρ Π΄Π΅ΡΠ°Π»Π΅ΠΉ ΡΠ»Π΅Π΄ΡΠ΅Ρ ΠΎΠ±ΡΠ°Π±ΠΎΡΠ°ΡΡ Π½Π°ΠΆΠ΄Π°ΡΠΊΠΎΠΉ.
- ΠΠΎ ΠΎΠΊΡΡΠΆΠ½ΠΎΡΡΠΈ ΠΏΡΠΎΠ΅ΠΌΠ° ΠΌΠΎΠ½ΡΠΈΡΡΠ΅ΡΡΡ Π΄Π΅ΡΠ΅Π²ΡΠ½Π½ΡΠΉ ΠΊΠ°ΡΠΊΠ°Ρ.
- ΠΠ΅ΠΆ ΡΠ»Π΅ΠΌΠ΅Π½ΡΠ°ΠΌΠΈ ΠΊΠ°ΡΠΊΠ°ΡΠ° ΡΠ»Π΅Π΄ΡΠ΅Ρ ΡΡΡΠ°Π½ΠΎΠ²ΠΈΡΡ ΠΏΠ΅ΡΠ΅ΠΌΡΡΠΊΠΈ. Π’Π°ΠΊΠ°Ρ ΠΊΠΎΠ½ΡΡΡΡΠΊΡΠΈΡ ΠΏΠΎΠ·Π²ΠΎΠ»ΠΈΡ Π»ΡΡΡΠ΅ ΡΡΠ΅ΠΏΠ»ΠΈΡΡ ΡΡΡΠΎΠ΅Π½ΠΈΠ΅.
- ΠΠ»Π°ΡΡΠΈΠΊΠΎΠ²ΡΠ΅ Π΄Π΅ΡΠ°Π»ΠΈ ΡΠΈΠΊΡΠΈΡΡΡΡΡΡ Ρ ΠΏΠΎΠΌΠΎΡΡΡ ΡΠ°ΠΌΠΎΡΠ΅Π·ΠΎΠ² Π»ΠΈΠ±ΠΎ ΠΆΠΈΠ΄ΠΊΠΈΠΌΠΈ Π³Π²ΠΎΠ·Π΄ΡΠΌΠΈ.
- ΠΠ°ΡΡΠΆΠ½ΡΠ΅ ΡΠ³Π»Ρ ΡΠ»Π΅Π΄ΡΠ΅Ρ Π·Π°ΠΊΠ»Π΅ΠΈΡΡ ΡΠΏΠ΅ΡΠΈΠ°Π»ΡΠ½ΠΎ ΠΏΡΠ΅Π΄Π½Π°Π·Π½Π°ΡΠ΅Π½Π½ΡΠΌΠΈ Π½Π°ΠΊΠ»Π°Π΄ΠΊΠ°ΠΌΠΈ.
ΠΡΠ΄Π΅Π»ΠΊΠ° ΠΎΡΠΊΠΎΡΠΎΠ² ΡΡΠ½Π΄Π²ΠΈΡ-ΠΏΠ°Π½Π΅Π»ΡΠΌΠΈ
Π‘ΡΠ½Π΄Π²ΠΈΡ-ΠΏΠ°Π½Π΅Π»ΠΈ ΡΠ°Π·Π½ΡΡΡΡ ΠΎΡ ΠΏΠ»Π°ΡΡΠΈΠΊΠΎΠ²ΡΡ Π±ΠΎΠ»Π΅Π΅ ΡΠΎΠ²Π΅ΡΡΠ΅Π½Π½ΠΎΠΉ ΠΊΠΎΠ½ΡΡΡΡΠΊΡΠΈΠ΅ΠΉ ΠΈ ΠΌΠ½ΠΎΠ³ΠΎΡΠΈΡΠ»Π΅Π½Π½ΡΠΌΠΈ ΠΏΠΎΠ»ΠΎΠΆΠΈΡΠ΅Π»ΡΠ½ΡΠΌΠΈ ΡΠ²ΠΎΠΉΡΡΠ²Π°ΠΌΠΈ. Π ΠΏΠ»ΡΡΠ°ΠΌ ΠΌΠΎΠΆΠ½ΠΎ ΠΏΡΠΈΡΠΈΡΠ»ΠΈΡΡ:
- ΠΡΠΎΠ΄ΠΎΠ»ΠΆΠΈΡΠ΅Π»ΡΠ½ΡΠΉ ΡΡΠΎΠΊ ΡΠΊΡΠΏΠ»ΡΠ°ΡΠ°ΡΠΈΠΈ.
- ΠΡΠΎΡΡΠΎΡΠ° ΠΌΠΎΠ½ΡΠ°ΠΆΠ°.
- Π£ΡΡΠΎΠΉΡΠΈΠ²ΠΎΡΡΡ ΠΊ Π°ΡΠΌΠΎΡΡΠ΅ΡΠ½ΡΠΌ ΡΠ²Π»Π΅Π½ΠΈΡΠΌ.
ΠΠ°ΡΡΠΆΠ½ΡΠ΅ ΠΎΠΊΠΎΠ½Π½ΡΠ΅ ΠΎΡΠΊΠΎΡΡ ΠΈΠ· ΡΠ΅Π½Π΄Π²ΠΈΡ-ΠΏΠ°Π½Π΅Π»Π΅ΠΉΠΡΠ΄Π΅Π»ΡΠ²Π°ΡΡ ΠΎΡΠΊΠΎΡΡ Π½ΡΠΆΠ½ΠΎ ΡΠ»Π΅Π΄ΡΡΡΠΈΠΌ ΠΎΠ±ΡΠ°Π·ΠΎΠΌ:
- ΠΠΎΠ΄Π³ΠΎΡΠΎΠ²ΠΈΡΠ΅Π»ΡΠ½ΡΠ΅ ΠΌΠ΅ΡΠΎΠΏΡΠΈΡΡΠΈΡ.
- ΠΠΎ ΠΎΠΊΡΡΠΆΠ½ΠΎΡΡΠΈ ΠΊΠ°ΡΠΊΠ°ΡΠ° ΠΎΠΊΠ½Π° ΡΡΡΠ°Π½Π°Π²Π»ΠΈΠ²Π°Π΅ΡΡΡ ΠΌΠ΅ΡΠ°Π»Π»ΠΎΠΏΡΠΎΡΠΈΠ»Ρ.
- ΠΠΎ Π½Π°ΡΡΠΆΠ½ΠΎΠΉ ΡΠ°ΡΡΠΈ ΠΎΡΠΊΠΎΡΠ° ΡΠΈΠΊΡΠΈΡΡΡΡΡΡ ΡΠ΅ΠΉΠΊΠΈ.
- ΠΡΠΏΠΎΠ»Π½Π΅Π½ΠΈΠ΅ Π·Π°ΠΌΠ΅ΡΠΎΠ².
- ΠΠ°ΡΠ΅Π·ΠΊΠ° Π·Π°Π³ΠΎΡΠΎΠ²ΠΎΠΊ.
- ΠΠ»Π΅ΠΌΠ΅Π½ΡΡ ΡΠ½Π°ΡΠ°Π»Π° Π²ΡΡΠ°Π²Π»ΡΡΡΡΡ Π² ΡΠΏΠ΅ΡΠΏΡΠΎΡΠΈΠ»Ρ, Π° Π·Π°ΡΠ΅ΠΌ ΠΏΡΠΎΠΈΠ·Π²ΠΎΠ΄ΠΈΡΡΡ ΠΊΡΠ΅ΠΏΠ»Π΅Π½ΠΈΠ΅ ΡΡΡΡΠΏΠ°ΠΌΠΈ.
- ΠΡΠΏΠΎΠ»Π½Π΅Π½ΠΈΠ΅ ΠΏΠΎΡΠ»Π΅Π΄ΡΡΡΠ΅ΠΉ ΠΎΡΠ΄Π΅Π»ΠΊΠΈ.
ΠΡΠ»ΠΈ Π½Π°Π»ΠΈΡΠ΅ΡΡΠ²ΡΠ΅Ρ ΠΏΠΎΡΡΠ΅Π±Π½ΠΎΡΡΡ, ΠΌΠΎΠΆΠ½ΠΎ ΠΏΡΠΎΠΈΠ·Π²Π΅ΡΡΠΈ Π΄ΠΎΠΏΠΎΠ»Π½ΠΈΡΠ΅Π»ΡΠ½ΠΎ ΡΡΠ΅ΠΏΠ»Π΅Π½ΠΈΠ΅ ΠΈΡΠΏΠΎΠ»ΡΠ·ΠΎΠ²Π°Π²ΡΠΈ ΠΏΠ΅Π½ΠΎΠΏΠ»Π°ΡΡ, ΠΏΠ΅Π½Ρ, Π»ΠΈΠ±ΠΎ ΠΏΠ΅Π½ΠΎΠΏΠΎΠ»ΠΈΡΡΠ΅ΡΠ°Π½.
ΠΡΠ΄Π΅Π»ΠΊΠ° ΠΎΡΠΊΠΎΡΠΎΠ² ΡΠ°ΠΉΠ΄ΠΈΠ½Π³ΠΎΠΌ
ΠΠΊΠΎΠ½Π½ΡΠ΅ ΠΎΡΠΊΠΎΡΡ ΠΎΡΠ΄Π΅Π»Π°Π½Π½ΡΠ΅ ΡΠ°ΠΉΠ΄ΠΈΠ½Π³ΠΎΠΌΠΡΠΊΠΎΡΡ ΠΈΠ· ΡΠ°ΠΉΠ΄ΠΈΠ½Π³Π° Π΄Π»Ρ ΠΎΠ±Π»ΠΈΡΠΎΠ²ΠΊΠΈ ΠΎΠΊΠΎΠ½ ΡΠ½Π°ΡΡΠΆΠΈ ΡΠ°ΡΠΏΡΠΎΡΡΡΠ°Π½Π΅Π½Ρ ΠΈΠ·-Π·Π° ΠΈΠ·ΠΎΠ±ΠΈΠ»ΠΈΡ ΠΏΠΎΠ»ΠΎΠΆΠΈΡΠ΅Π»ΡΠ½ΡΡ Ρ Π°ΡΠ°ΠΊΡΠ΅ΡΠΈΡΡΠΈΠΊ. ΠΡΠΎΡΡΠΎΡΠ° ΡΡΡΠ°Π½ΠΎΠ²ΠΊΠΈ ΠΌΠ΅ΡΠ°Π»Π»ΠΎΡΠ°ΠΉΠ΄ΠΈΠ½Π³Π° ΠΏΠΎΠ·Π²ΠΎΠ»ΡΠ΅Ρ ΠΏΡΠΎΠΈΠ·Π²Π΅ΡΡΠΈ Π²ΡΠ΅ ΠΌΠ°Π½ΠΈΠΏΡΠ»ΡΡΠΈΠΈ ΡΠ°ΠΌΠΎΡΡΠΎΡΡΠ΅Π»ΡΠ½ΠΎ. ΠΠΎΠ½ΡΠ°ΠΆ Π·Π°ΠΊΠ»ΡΡΠ°Π΅ΡΡΡ Π² ΡΠ°ΠΊΠΈΡ ΡΡΠ°ΠΏΠ°Ρ :
- ΠΠ°ΠΌΠ΅ΡΡ ΠΏΡΠΎΠ΅ΠΌΠ°.
- ΠΠ·Π³ΠΎΡΠΎΠ²Π»Π΅Π½ΠΈΠ΅ ΡΠ»Π΅ΠΌΠ΅Π½ΡΠΎΠ².
- ΠΠΎΠ΄ΡΠ΅Π·ΠΊΠ° ΠΈ ΠΏΠΎΠ΄Π³ΠΎΠ½ΠΊΠ° ΠΎΡΡΠ΅Π·ΠΊΠΎΠ².
- Π€ΠΈΠΊΡΠ°ΡΠΈΡ ΠΏΡΠΎΠΈΠ·Π²ΠΎΠ΄ΠΈΡΡΡ Π² ΡΠ»Π΅Π΄ΡΡΡΠ΅ΠΌ ΠΏΠΎΡΡΠ΄ΠΊΠ΅: ΠΎΡΠ»ΠΈΠ², Π²Π΅ΡΡ Π½ΠΈΠΉ Π½Π°Π»ΠΈΡΠ½ΠΈΠΊ, Π±ΠΎΠΊΠΎΠ²ΡΠ΅ ΠΎΡΡΠ΅Π·ΠΊΠΈ.
ΠΠΎΠ»ΠΈΡΡΠ΅ΡΠ°Π½ΠΎΠ²ΡΠΉ ΠΎΡΠΊΠΎΡ
ΠΡΠΎΠ±ΠΎΠ΅ Π²Π½ΠΈΠΌΠ°Π½ΠΈΠ΅ ΡΠ»Π΅Π΄ΡΠ΅Ρ ΡΠ΄Π΅Π»ΠΈΡΡ ΠΎΡΠΊΠΎΡΠ°ΠΌ ΠΈΠ· ΠΏΠΎΠ»ΠΈΡΡΠ΅ΡΠ°Π½Π°, ΠΊΠΎΡΠΎΡΡΠ΅ ΠΏΡΠ΅Π΄Π½Π°Π·Π½Π°ΡΠ°ΡΡΡΡ Π΄Π»Ρ ΡΠΈΠ½Ρ ΡΠΎΠ½Π½ΠΎΠΉ ΠΎΠ±Π»ΠΈΡΠΎΠ²ΠΊΠΈ ΠΈ ΡΡΠ΅ΠΏΠ»Π΅Π½ΠΈΡ ΠΎΠΊΠΎΠ½Π½ΡΡ ΠΊΠΎΠ½ΡΡΡΡΠΊΡΠΈΠΉ. ΠΠ΅ΠΊΠΎΡΠΈΡΠΎΠ²Π°Π½ΠΈΠ΅ ΠΎΡΠΊΠΎΡΠΎΠ² Π΄Π°Π½Π½ΡΠΌ ΠΌΠ°ΡΠ΅ΡΠΈΠ°Π»ΠΎΠΌ ΠΏΠΎΠ·Π²ΠΎΠ»ΠΈΡ Π²ΠΏΠΈΡΠ°ΡΡ ΠΎΠΊΠ½Π° Π² ΠΎΠ±ΡΠΈΠΉ ΠΎΡΠ½Π°ΡΠ΅Π½Π½ΡΠΉ Π»Π΅ΠΏΠ½ΠΈΠ½ΠΎΠΉ ΡΠ°ΡΠ°Π΄ Π΄ΠΎΠΌΠ°. ΠΠ°ΠΊ ΠΏΡΠ°Π²ΠΈΠ»ΠΎ, ΠΎΡΠΊΠΎΡΡ ΠΈΠΌΠ΅ΡΡ Π±Π΅Π»ΡΠΉ ΠΎΠΊΡΠ°Ρ, ΡΡΠΎ Π·ΡΠΈΡΠ΅Π»ΡΠ½ΠΎ ΡΠ²Π΅Π»ΠΈΡΠΈΠ²Π°Π΅Ρ ΠΎΠΊΠΎΠ½Π½ΡΠ΅ Π±Π»ΠΎΠΊΠΈ. ΠΡΠΏΠΎΠ»ΡΠ·ΠΎΠ²Π°Π½ΠΈΠ΅ ΡΠ°ΠΊΠΎΠ³ΠΎ ΡΠ΅ΡΠΌΠΎΠΎΡΠΊΠΎΡΠ° Π² Π½ΠΎΠ²ΠΎΡΡΡΠΎΠΉΠΊΠ°Ρ ΠΏΠΎΠ·Π²ΠΎΠ»ΠΈΡ ΠΏΠ΅ΡΠ΅ΡΠΌΠΎΡΡΠ΅ΡΡ ΡΡ Π΅ΠΌΡ ΡΡΠ΅ΠΏΠ»Π΅Π½ΠΈΡ Π·Π΄Π°Π½ΠΈΡ.
ΠΠ°ΡΠ΅ΡΠΈΠ°Π»ΠΎΠ² Π΄Π»Ρ Π½Π°ΡΡΠΆΠ½ΠΎΠΉ ΠΎΠ±Π»ΠΈΡΠΎΠ²ΠΊΠΈ ΠΎΡΠΊΠΎΡΠΎΠ² Π΄ΠΎΡΡΠ°ΡΠΎΡΠ½ΠΎ, ΠΊΠ°ΠΆΠ΄ΡΠΉ ΠΈΠ· ΠΊΠΎΡΠΎΡΡΡ ΡΠ°ΡΠΏΠΎΠ»Π°Π³Π°Π΅Ρ ΠΊΠ°ΠΊ ΠΏΡΠ΅ΠΈΠΌΡΡΠ΅ΡΡΠ²Π°ΠΌΠΈ, ΡΠ°ΠΊ ΠΈ Π½Π΅Π΄ΠΎΡΡΠ°ΡΠΊΠ°ΠΌΠΈ. Π‘Π»Π΅Π΄ΠΎΠ²Π°ΡΠ΅Π»ΡΠ½ΠΎ, ΠΏΡΠ΅ΠΆΠ΄Π΅ ΡΠ΅ΠΌ ΠΎΡΠ΄Π°Π²Π°ΡΡ ΠΏΡΠ΅Π΄ΠΏΠΎΡΡΠ΅Π½ΠΈΠ΅ ΡΠΎΠΌΡ ΠΈΠ»ΠΈ ΠΈΠ½ΠΎΠΌΡ ΡΡΡΠΎΠΉΠΌΠ°ΡΠ΅ΡΠΈΠ°Π»Ρ, ΡΠ»Π΅Π΄ΡΠ΅Ρ ΠΏΡΠΎΡΠΌΠΎΡΡΠ΅ΡΡ ΡΠΎΡΠΎ ΠΈ Π²ΠΈΠ΄Π΅ΠΎ ΠΎΡΠ½ΠΎΡΠΈΡΠ΅Π»ΡΠ½ΠΎ Ρ Π°ΡΠ°ΠΊΡΠ΅ΡΠΈΡΡΠΈΠΊ ΠΈ ΡΠΏΠΎΡΠΎΠ±Π° ΠΌΠΎΠ½ΡΠ°ΠΆΠ°.
Π€ΠΎΡΠΎΠ³Π°Π»Π΅ΡΠ΅Ρ Π³ΠΎΡΠΎΠ²ΡΡ ΡΠ°Π±ΠΎΡ
otdelkasam.ru
ΠΠ· ΠΊΠ°ΠΊΠΈΡ ΠΌΠ°ΡΠ΅ΡΠΈΠ°Π»ΠΎΠ² Π²ΡΠΏΠΎΠ»Π½ΠΈΡΡ ΠΎΡΠ΄Π΅Π»ΠΊΡ Π²Π½Π΅ΡΠ½ΠΈΡ ΠΎΡΠΊΠΎΡΠΎΠ² ΠΎΠΊΠΎΠ½
ΠΠΎΡΠ»Π΅ ΡΡΡΠ°Π½ΠΎΠ²ΠΊΠΈ ΠΎΠΊΠΎΠ½ ΠΌΠ½ΠΎΠ³ΠΈΠ΅ Π·Π°Π±ΡΠ²Π°ΡΡ ΠΎ ΡΠΎΠΌ, ΡΡΠΎ Π½ΡΠΆΠ½Π° ΠΎΡΠ΄Π΅Π»ΠΊΠ° Π½Π°ΡΡΠΆΠ½ΡΡ ΠΎΡΠΊΠΎΡΠΎΠ² ΠΏΠ»Π°ΡΡΠΈΠΊΠΎΠ²ΡΡ ΠΎΠΊΠΎΠ½. ΠΡΠΎΡ Π²ΠΈΠ΄ ΡΠ°Π±ΠΎΡ ΠΏΡΠΎΠ²Π΅ΡΡΠΈ Π½Π΅ΠΎΠ±Ρ ΠΎΠ΄ΠΈΠΌΠΎ: ΠΊΡΠΎΠΌΠ΅ Π΄Π΅ΠΊΠΎΡΠ°ΡΠΈΠ²Π½ΠΎΠΉ ΡΡΠ½ΠΊΡΠΈΠΈ, ΠΎΡΠΊΠΎΡΡ ΠΈΠ³ΡΠ°ΡΡ ΠΈ Π²Π΅ΡΡΠΌΠ° Π²Π°ΠΆΠ½ΡΡ ΠΏΡΠ°ΠΊΡΠΈΡΠ΅ΡΠΊΡΡ ΡΠΎΠ»Ρ. ΠΠ½ΠΈ ΠΏΡΠΈΠΌΠ΅Π½ΡΡΡΡΡ Π΄Π»Ρ Π·Π°ΡΠΈΡΡ ΠΎΠΊΠΎΠ½Π½ΠΎΠΉ ΠΊΠΎΠ½ΡΡΡΡΠΊΡΠΈΠΈ ΠΈ ΡΠ°ΡΠ°Π΄Π° Π·Π΄Π°Π½ΠΈΡ ΠΎΡ Π²Π»Π°Π³ΠΈ ΠΈ ΡΠΊΠ²ΠΎΠ·Π½ΡΠΊΠΎΠ², ΠΏΠΎΡΡΠΎΠΌΡ ΠΏΡΠ΅Π½Π΅Π±ΡΠ΅Π³Π°ΡΡ ΠΈΠΌΠΈ Π½Π΅ ΡΡΠΎΠΈΡ. ΠΡΠ»ΠΈ ΡΡΡΠ°Π½ΠΎΠ²ΡΠΈΠΊΠΈ ΠΎΠΊΠΎΠ½ ΡΠΏΡΡΡΠΈΠ»ΠΈ ΡΡΡ Π΄Π΅ΡΠ°Π»Ρ ΠΈΠ· Π²ΠΈΠ΄Ρ, Π·Π°ΠΊΠΎΠ½ΡΠΈΡΡ Π·Π° Π½ΠΈΡ Π½Π°ΡΠ°ΡΠΎΠ΅ ΠΌΠΎΠΆΠ½ΠΎ ΡΠ²ΠΎΠΈΠΌΠΈ ΡΠΈΠ»Π°ΠΌΠΈ.
Π§ΡΠΎ ΠΏΠΎΡΡΠ΅Π±ΡΠ΅ΡΡΡ Π΄Π»Ρ ΠΏΡΠΎΠ²Π΅Π΄Π΅Π½ΠΈΡ ΡΠ°Π±ΠΎΡ?
ΠΠ°ΡΡΠΆΠ½Π°Ρ ΠΎΡΠ΄Π΅Π»ΠΊΠ° ΠΎΠΊΠΎΠ½ Π½Π΅ ΡΠ²Π»ΡΠ΅ΡΡΡ ΡΠ΅ΠΌ-ΡΠΎ ΡΠ»ΠΎΠΆΠ½ΡΠΌ, Π΄Π»Ρ Π΅Π΅ ΠΏΡΠΎΠ²Π΅Π΄Π΅Π½ΠΈΡ ΠΏΠΎΡΡΠ΅Π±ΡΠ΅ΡΡΡ ΠΏΡΠΎΡΡΠΎΠΉ Π½Π°Π±ΠΎΡ ΠΈΠ½ΡΡΡΡΠΌΠ΅Π½ΡΠΎΠ². Π‘Π°ΠΌΠΈ ΠΎΡΠΊΠΎΡΡ ΠΌΠΎΠΆΠ½ΠΎ ΠΊΡΠΏΠΈΡΡ Π² Π³ΠΎΡΠΎΠ²ΠΎΠΌ Π²ΠΈΠ΄Π΅ ΠΈΠ»ΠΈ ΡΠ°ΠΌΠΎΡΡΠΎΡΡΠ΅Π»ΡΠ½ΠΎ ΠΈΠ·Π³ΠΎΡΠΎΠ²ΠΈΡΡ Π΄ΠΎΠΌΠ°. Π ΠΊΠ°ΡΠ΅ΡΡΠ²Π΅ ΠΌΠ°ΡΠ΅ΡΠΈΠ°Π»Π° Π² ΡΡΠΎΠΌ ΡΠ»ΡΡΠ°Π΅ ΡΠ΄ΠΎΠ±Π½Π΅Π΅ Π²ΡΠ΅Π³ΠΎ ΠΈΡΠΏΠΎΠ»ΡΠ·ΠΎΠ²Π°ΡΡ ΠΏΠ»Π°ΡΡΠΈΠΊΠΎΠ²ΡΠ΅ ΠΈΠ»ΠΈ ΠΌΠ΅ΡΠ°Π»Π»ΠΈΡΠ΅ΡΠΊΠΈΠ΅ Π»ΠΈΡΡΡ.
ΠΠ»Π°Π²Π½ΠΎΠΉ Π·Π°Π΄Π°ΡΠ΅ΠΉ ΡΠ²Π»ΡΠ΅ΡΡΡ ΡΠ±ΠΎΡΠΊΠ° Π²ΡΠ΅Ρ Π½Π΅ΠΎΠ±Ρ ΠΎΠ΄ΠΈΠΌΡΡ ΡΠ»Π΅ΠΌΠ΅Π½ΡΠΎΠ², Π² ΠΏΡΠΎΡΠΈΠ²Π½ΠΎΠΌ ΡΠ»ΡΡΠ°Π΅ ΠΊΠΎΠ½ΡΡΡΡΠΊΡΠΈΡ Π½Π΅ ΡΠΌΠΎΠΆΠ΅Ρ Π²ΡΠΏΠΎΠ»Π½ΡΡΡ Π²ΡΠ΅ ΡΠ²ΠΎΠΈ ΡΡΠ½ΠΊΡΠΈΠΈ. ΠΠ΅Π»ΡΠ·Ρ ΠΊΡΠ΅ΠΏΠΈΡΡ ΠΎΡΠΊΠΎΡ ΠΊ ΡΠ°ΠΌΠΎΠΌΡ ΠΎΠΊΠ½Ρ, ΠΏΠΎΡΡΠΎΠΌΡ ΠΎΠ½ ΠΌΠΎΠ½ΡΠΈΡΡΠ΅ΡΡΡ Π½Π° ΡΡΠ΅Π½Ρ, ΡΠ°ΡΠ΅ Π²ΡΠ΅Π³ΠΎ Π΄Π»Ρ ΡΡΠΎΠ³ΠΎ ΠΏΡΠΈΠΌΠ΅Π½ΡΡΡΡΡ Π΄Π΅ΡΠ΅Π²ΡΠ½Π½ΡΠ΅ ΡΠ΅ΠΉΠΊΠΈ.
Π‘ΠΎΠ²Π΅Ρ: Π² ΠΏΡΠΎΡΠ΅ΡΡΠ΅ ΡΠ°Π±ΠΎΡΡ ΠΌΠ΅ΠΆΠ΄Ρ ΠΊΠ°ΡΠΊΠ°ΡΠΎΠΌ ΠΈ ΡΡΠ΅Π½ΠΎΠΉ ΠΎΠ±ΡΠ°Π·ΡΠ΅ΡΡΡ ΠΏΡΡΡΠΎΡΠ°. ΠΠ΅ ΠΌΠΎΠΆΠ½ΠΎ Π·Π°ΠΏΠΎΠ»Π½ΠΈΡΡ ΡΡΠ΅ΠΏΠ»ΠΈΡΠ΅Π»Π΅ΠΌ, Π½Π°ΠΏΡΠΈΠΌΠ΅Ρ, ΠΏΠ΅Π½ΠΎΠΏΠ»Π°ΡΡΠΎΠΌ, ΠΌΠΎΠ½ΡΠ°ΠΆΠ½ΠΎΠΉ ΠΏΠ΅Π½ΠΎΠΉ ΠΈΠ»ΠΈ ΠΌΠΈΠ½Π΅ΡΠ°Π»ΡΠ½ΠΎΠΉ Π²Π°ΡΠΎΠΉ. ΠΡΠΎ ΡΠ΄Π΅Π»Π°Π΅Ρ ΠΊΠΎΠ½ΡΡΡΡΠΊΡΠΈΡ Π½Π΅ ΡΠΎΠ»ΡΠΊΠΎ Π±ΠΎΠ»Π΅Π΅ ΡΠ΅ΠΏΠ»ΠΎΠΉ, Π½ΠΎ ΠΈ ΡΠ½ΠΈΠ·ΠΈΡ ΡΡΠΎΠ²Π΅Π½Ρ ΡΡΠΌΠ° Ρ ΡΠ»ΠΈΡΡ.
Π€ΠΈΠΊΡΠΈΡΠΎΠ²Π°ΡΡ ΠΊΠ°ΡΠΊΠ°Ρ ΠΌΠΎΠΆΠ½ΠΎ ΠΏΡΠΈ ΠΏΠΎΠΌΠΎΡΠΈ ΡΠΈΠ»ΠΈΠΊΠΎΠ½ΠΎΠ²ΠΎΠ³ΠΎ Π³Π΅ΡΠΌΠ΅ΡΠΈΠΊΠ°, ΡΠ°ΠΌΠΎΡΠ΅Π·ΠΎΠ²; Π²ΡΠ±ΠΎΡ Π΄Π΅Π»Π°ΡΡ Π² Π·Π°Π²ΠΈΡΠΈΠΌΠΎΡΡΠΈ ΠΎΡ ΠΌΠ°ΡΠ΅ΡΠΈΠ°Π»Π° ΡΡΠ΅Π½. ΠΠ»Ρ ΡΠ°Π±ΠΎΡΡ Π²Π°ΠΌ ΠΏΠΎΡΡΠ΅Π±ΡΠ΅ΡΡΡ ΠΈΠΌΠ΅ΡΡ ΠΏΠΎΠ΄ ΡΡΠΊΠΎΠΉ Π½ΠΎΠΆΠΎΠ²ΠΊΡ, ΡΡΡΠΎΠΈΡΠ΅Π»ΡΠ½ΡΠΉ ΡΡΠ΅ΠΏΠ»Π΅Ρ, ΡΡΡΠΎΠΈΡΠ΅Π»ΡΠ½ΡΠΉ ΡΡΠΎΠ²Π΅Π½Ρ ΠΈ Π΄ΡΠ΅Π»Ρ. ΠΡΠ»ΠΈ Π²Ρ ΡΠ°Π±ΠΎΡΠ°Π΅ΡΠ΅ Ρ ΠΌΠ΅ΡΠ°Π»Π»ΠΎΠΌ, ΠΏΠΎΡΡΠ΅Π±ΡΡΡΡΡ Π½ΠΎΠΆΠ½ΠΈΡΡ Π΄Π»Ρ Π΅Π³ΠΎ ΡΠ΅Π·ΠΊΠΈ, Π½Π΅ Π»ΠΈΡΠ½ΠΈΠΌ Π±ΡΠ΄Π΅Ρ ΠΈΠΌΠ΅ΡΡ ΠΈ ΠΊΠ°Π½ΡΠ΅Π»ΡΡΡΠΊΠΈΠΉ Π½ΠΎΠΆ.
Π‘ΠΎΠ²Π΅Ρ: Π²ΡΠ±ΠΈΡΠ°Ρ ΠΌΠ°ΡΠ΅ΡΠΈΠ°Π» Π΄Π»Ρ ΠΎΡΠΊΠΎΡΠΎΠ², Π½ΡΠΆΠ½ΠΎ ΠΎΡΠ΄Π°Π²Π°ΡΡ ΠΏΡΠ΅Π΄ΠΏΠΎΡΡΠ΅Π½ΠΈΠ΅ ΠΏΡΠΎΡΠ½ΠΎΠΌΡ ΠΏΠ»Π°ΡΡΠΈΠΊΡ ΠΈΠ»ΠΈ Π½Π΅ΡΠΆΠ°Π²Π΅ΡΡΠ΅ΠΉ ΡΡΠ°Π»ΠΈ. ΠΠ°ΡΠ΅ΡΠΈΠ°Π»Ρ Π½Π΅ Π΄ΠΎΠ»ΠΆΠ½Ρ Π±ΠΎΡΡΡΡΡ ΠΏΠ΅ΡΠ΅ΠΏΠ°Π΄ΠΎΠ² ΡΠ΅ΠΌΠΏΠ΅ΡΠ°ΡΡΡ, Π²Π»Π°ΠΆΠ½ΠΎΡΡΠΈ, ΠΏΡΠΎΡΠΈΡ Π½Π΅Π³Π°ΡΠΈΠ²Π½ΡΡ Π²ΠΎΠ·Π΄Π΅ΠΉΡΡΠ²ΠΈΠΉ.
Β
ΠΠΎ Π½Π°ΡΠ°Π»Π° ΡΠ°Π±ΠΎΡΡΠΠ· ΡΠ΅Π³ΠΎ Π΄Π΅Π»Π°ΡΡ ΠΎΡΠΊΠΎΡΡ?
ΠΠ°ΡΡΠΆΠ½Π°Ρ ΠΎΡΠ΄Π΅Π»ΠΊΠ° ΠΎΠΊΠΎΠ½ Π½Π΅ ΠΈΠΌΠ΅Π΅Ρ ΠΆΠ΅ΡΡΠΊΠΈΡ ΠΊΡΠΈΡΠ΅ΡΠΈΠ΅Π². ΠΠ»Ρ Π½Π΅Π΅ ΠΌΠΎΠΆΠ½ΠΎ ΠΈΡΠΏΠΎΠ»ΡΠ·ΠΎΠ²Π°ΡΡ ΡΠΎΡ ΠΌΠ°ΡΠ΅ΡΠΈΠ°Π», ΠΊΠΎΡΠΎΡΡΠΉ Π²Ρ ΡΡΠΈΡΠ°Π΅ΡΠ΅ Π½Π°ΠΈΠ±ΠΎΠ»Π΅Π΅ ΠΎΠΏΡΠΈΠΌΠ°Π»ΡΠ½ΡΠΌ: Π½Π°ΠΏΡΠΈΠΌΠ΅Ρ, Π΅ΡΠ»ΠΈ Π²Ρ ΡΠΌΠ΅Π΅ΡΠ΅ ΡΡΡΠΊΠ°ΡΡΡΠΈΡΡ ΠΎΡΠΊΠΎΡΡ, ΠΌΠΎΠΆΠ½ΠΎ ΡΡΠΎΡΠΌΠΈΡΠΎΠ²Π°ΡΡ ΠΈΠ· ΡΠΏΠ°ΠΊΠ»Π΅Π²ΠΊΠΈ ΠΈΠ»ΠΈ ΡΠ΄Π΅Π»Π°ΡΡ ΠΈΠ· ΠΏΠ΅Π½ΠΎΠΏΠ»Π°ΡΡΠ° ΠΈ Π·Π°ΡΠΏΠ°ΠΊΠ»Π΅Π²Π°ΡΡ. Π’Π°ΠΊΠ°Ρ ΡΠ°Π±ΠΎΡΠ° ΡΡΠ΅Π±ΡΠ΅Ρ ΠΎΠΏΡΠ΅Π΄Π΅Π»Π΅Π½Π½ΡΡ Π½Π°Π²ΡΠΊΠΎΠ². ΠΠ»Ρ Π»ΡΠ±ΠΈΡΠ΅Π»Ρ Π±ΡΠ΄Π΅Ρ ΠΏΡΠΎΡΠ΅ ΠΈΡΠΏΠΎΠ»ΡΠ·ΠΎΠ²Π°ΡΡ Π³ΠΎΡΠΎΠ²ΡΠ΅ Π·Π°Π²ΠΎΠ΄ΡΠΊΠΈΠ΅ ΠΌΠ°ΡΠ΅ΡΠΈΠ°Π»Ρ, Π½Π°ΠΏΡΠΈΠΌΠ΅Ρ, ΠΏΠ»Π°ΡΡΠΈΠΊΠΎΠ²ΡΠ΅ ΠΏΠ°Π½Π΅Π»ΠΈ, ΠΊΠΎΡΠΎΡΡΠ΅ ΡΠ²Π»ΡΡΡΡΡ ΡΠ΄ΠΎΠ±Π½ΡΠΌ ΠΈ Π½Π΅Π΄ΠΎΡΠΎΠ³ΠΈΠΌ ΡΠΏΠΎΡΠΎΠ±ΠΎΠΌ, ΠΏΠΎΠ·Π²ΠΎΠ»ΡΡΡΠΈΠΌ Π±ΡΡΡΡΠΎ Π²ΡΠΏΠΎΠ»Π½ΠΈΡΡ ΡΠ°Π±ΠΎΡΡ.
ΠΠ΅ Π² ΠΏΠΎΠ»ΡΠ·Ρ ΡΠΏΠ°ΠΊΠ»Π΅Π²ΠΊΠΈ Π³ΠΎΠ²ΠΎΡΠΈΡ ΠΈ Π΅Π΅ Π½Π΅ΡΠΏΠΎΡΠΎΠ±Π½ΠΎΡΡΡ ΠΏΡΠΎΡΠΈΠ²ΠΎΡΡΠΎΡΡΡ ΡΠ΅Π·ΠΊΠΈΠΌ ΠΏΠ΅ΡΠ΅ΠΏΠ°Π΄Π°ΠΌ ΡΠ΅ΠΌΠΏΠ΅ΡΠ°ΡΡΡΡ. ΠΠ·-Π·Π° Π½ΠΈΡ ΠΎΡΠΊΠΎΡΡ ΡΠΎ Π²ΡΠ΅ΠΌΠ΅Π½Π΅ΠΌ ΠΏΠΎΠΊΡΠΎΡΡΡΡ ΡΡΠ΅ΡΠΈΠ½Π°ΠΌΠΈ ΠΈ Π½Π°ΡΠ½ΡΡ ΠΏΡΠΎΠΏΡΡΠΊΠ°ΡΡ Π²Π»Π°Π³Ρ, ΠΏΠΎΡΡΠ΅Π±ΡΠ΅ΡΡΡ ΠΏΠΎΠΊΡΡΠ²Π°ΡΡ ΠΈΡ Π½ΠΎΠ²ΡΠΌ ΡΠ»ΠΎΠ΅ΠΌ ΡΡΡΠΊΠ°ΡΡΡΠΊΠΈ. ΠΠ΄Π½Π°ΠΊΠΎ ΡΡΠΎ Π½Π°ΠΈΠ±ΠΎΠ»Π΅Π΅ Π΄Π΅ΡΠ΅Π²ΡΠΉ Π²Π°ΡΠΈΠ°Π½Ρ.
Π‘ΠΎΠ²Π΅Ρ: Π΅ΡΠ»ΠΈ ΠΊΠ²Π°ΡΡΠΈΡΠ° Π½Π°Ρ ΠΎΠ΄ΠΈΡΡΡ Π½Π° Π±ΠΎΠ»ΡΡΠΎΠΉ Π²ΡΡΠΎΡΠ΅, Π° ΠΎΠΊΠ½ΠΎ Π½Π΅ Π²ΡΡ ΠΎΠ΄ΠΈΡ Π½Π° Π±Π°Π»ΠΊΠΎΠ½, ΠΏΡΠΈΠ΄Π΅ΡΡΡ Π½Π°Π½ΠΈΠΌΠ°ΡΡ ΠΏΡΠΎΡΠ΅ΡΡΠΈΠΎΠ½Π°Π»ΠΎΠ², ΡΠΏΠΎΡΠΎΠ±Π½ΡΡ ΠΏΡΠΈΠΌΠ΅Π½ΡΡΡ Π°Π»ΡΠΏΠΈΠ½ΠΈΡΡΡΠΊΠΎΠ΅ ΠΎΠ±ΠΎΡΡΠ΄ΠΎΠ²Π°Π½ΠΈΠ΅. Π ΠΏΡΠΎΡΠΈΠ²Π½ΠΎΠΌ ΡΠ»ΡΡΠ°Π΅ Π²Ρ Π½Π΅ ΡΠΎΠ»ΡΠΊΠΎ ΡΠΈΡΠΊΡΠ΅ΡΠ΅ ΡΠΏΠ°ΡΡΡ, Π½ΠΎ ΠΈ Π½Π΅ ΡΠ΄Π΅Π»Π°Π΅ΡΠ΅ ΡΠ°Π±ΠΎΡΡ ΠΊΠ°ΡΠ΅ΡΡΠ²Π΅Π½Π½ΠΎ, ΡΠ°ΠΊ ΠΊΠ°ΠΊ Π½Π΅ ΡΠΌΠΎΠΆΠ΅ΡΠ΅ Π΄ΠΎΡΡΠ°ΡΡ Π΄ΠΎ Π²ΡΠ΅Ρ ΡΠ°ΡΡΠ΅ΠΉ ΠΊΠΎΠ½ΡΡΡΡΠΊΡΠΈΠΈ; ΠΊΡΠΎΠΌΠ΅ ΡΡΠΎΠ³ΠΎ, ΠΈΠΌΠ΅Π΅ΡΡΡ ΡΠΈΡΠΊ ΠΈΡΠΏΠ°ΡΠΊΠ°ΡΡ Π»ΡΠ΄Π΅ΠΉ ΠΈ ΠΏΡΠ΅Π΄ΠΌΠ΅ΡΡ, ΠΊΠΎΡΠΎΡΡΠ΅ Π½Π°Ρ ΠΎΠ΄ΡΡΡΡ Π½ΠΈΠΆΠ΅ Π²Π°ΡΠ΅Π³ΠΎ ΠΎΠΊΠ½Π°.
ΠΠΎΠ»Π΅Π΅ Π΄ΠΎΡΡΡΠΏΠ½Π°Ρ ΠΎΡΠ΄Π΅Π»ΠΊΠ° Π²Π½Π΅ΡΠ½ΠΈΡ ΠΎΡΠΊΠΎΡΠΎΠ² ΠΎΠΊΠΎΠ½ β ΠΏΡΠΈ ΠΏΠΎΠΌΠΎΡΠΈ ΠΏΠ»Π°ΡΡΠΈΠΊΠΎΠ²ΡΡ ΡΠ³ΠΎΠ»ΠΊΠΎΠ². Π Π°Π±ΠΎΡΠ° Ρ Π½ΠΈΠΌΠΈ Π΄ΠΎΡΡΠ°ΡΠΎΡΠ½ΠΎ ΠΏΡΠΎΡΡΠ° ΠΈ Π½Π΅ Π·Π°Π½ΠΈΠΌΠ°Π΅Ρ ΠΌΠ½ΠΎΠ³ΠΎ Π²ΡΠ΅ΠΌΠ΅Π½ΠΈ, ΡΠ³ΠΎΠ»ΠΎΠΊ Π²Π΅ΡΠΈΡ ΠΌΠ°Π»ΠΎ, ΡΠΈΠΊΡΠΈΡΡΠ΅ΡΡΡ Π½Π΅ΠΏΠΎΡΡΠ΅Π΄ΡΡΠ²Π΅Π½Π½ΠΎ Π½Π° ΡΠ°ΠΌΡ, Π΄Π»Ρ ΡΠ΅Π³ΠΎ ΠΏΡΠΈΠΌΠ΅Π½ΡΡΡ Π΄Π²ΡΡΡΠΎΡΠΎΠ½Π½ΠΈΠΉ ΡΠΊΠΎΡΡ.
Π€ΠΈΠΊΡΠ°ΡΠΈΡ ΡΠΎ ΡΡΠ΅Π½ΠΎΠΉ ΠΏΡΠΎΠΈΡΡ ΠΎΠ΄ΠΈΡ Π·Π° ΡΡΠ΅Ρ ΡΠΏΠ΅ΡΠΈΠ°Π»ΡΠ½ΠΎΠ³ΠΎ ΠΊΠ»Π΅Ρ. Π’Π°ΠΊΠΎΠΉ Π²Π°ΡΠΈΠ°Π½Ρ ΠΎΠ±ΠΎΠΉΠ΄Π΅ΡΡΡ Π½Π΅Π΄ΠΎΡΠΎΠ³ΠΎ, ΠΏΡΠΈ ΡΡΠΎΠΌ ΠΏΠΎΠ·Π²ΠΎΠ»ΠΈΡ Π³Π΅ΡΠΌΠ΅ΡΠΈΡΠ½ΠΎ Π·Π°ΠΊΡΡΡΡ ΠΎΠΊΠΎΠ½Π½ΡΠΉ ΠΏΡΠΎΠ΅ΠΌ ΠΎΡ ΠΎΡΠ°Π΄ΠΊΠΎΠ² ΠΈ ΠΊΠΎΠ½Π΄Π΅Π½ΡΠ°ΡΠ°. ΠΠ΅ Π±ΠΎΠΈΡΡΡ ΠΊΠΎΠ½ΡΡΡΡΠΊΡΠΈΡ ΠΈ ΡΠ»ΡΡΡΠ°ΡΠΈΠΎΠ»Π΅ΡΠ° ΠΏΠ΅ΡΠ΅ΠΏΠ°Π΄Π° ΡΠ΅ΠΌΠΏΠ΅ΡΠ°ΡΡΡ, Π²Π΅ΡΡΠ°.
Π¨ΡΡΠΊΠ°ΡΡΡΠ½ΡΠ΅ ΠΎΡΠΊΠΎΡΡΠΠ°ΡΡΠΆΠ½Π°Ρ ΠΎΡΠ΄Π΅Π»ΠΊΠ° ΠΎΠΊΠΎΠ½Π½ΡΡ ΠΎΡΠΊΠΎΡΠΎΠ² Π²Π΅ΡΡΠΌΠ° ΡΠ°ΡΡΠΎ ΠΏΡΠΎΠ²ΠΎΠ΄ΠΈΡΡΡ ΠΏΡΠΈ ΠΏΠΎΠΌΠΎΡΠΈ Π»ΠΈΡΡΠΎΠ² ΠΎΡΠΈΠ½ΠΊΠΎΠ²Π°Π½Π½ΠΎΠΉ ΡΡΠ°Π»ΠΈ. Π’Π°ΠΊΠΎΠΉ ΠΌΠ°ΡΠ΅ΡΠΈΠ°Π» ΠΈΠΌΠ΅Π΅Ρ ΡΡΠ΄ ΠΏΡΠ΅ΠΈΠΌΡΡΠ΅ΡΡΠ², ΡΠ°ΠΊ ΠΊΠ°ΠΊ Π²Π΅ΡΡΠΌΠ° Π΄ΠΎΠ»Π³ΠΎΠ²Π΅ΡΠ΅Π½ ΠΈ ΠΌΠΎΠΆΠ΅Ρ Ρ ΠΎΡΠΎΡΠΎ ΠΈΠ·ΠΎΠ»ΠΈΡΠΎΠ²Π°ΡΡ ΠΏΡΠΎΡΡΡΠ°Π½ΡΡΠ²ΠΎ ΠΎΠΊΠ½Π°. ΠΠ΄Π½Π°ΠΊΠΎ ΠΈΠΌΠ΅ΡΡΡΡ ΠΈ ΠΌΠΈΠ½ΡΡΡ, Π½Π°ΠΏΡΠΈΠΌΠ΅Ρ, ΠΎΠ±ΡΠ·Π°ΡΠ΅Π»ΡΠ½ΠΎ ΠΏΠΎΡΡΠ΅Π±ΡΠ΅ΡΡΡ Π΄ΠΎΠΏΠΎΠ»Π½ΠΈΡΠ΅Π»ΡΠ½Π°Ρ Π·Π²ΡΠΊΠΎΠΈΠ·ΠΎΠ»ΡΡΠΈΡ.
ΠΠΎΠ½ΡΠ°ΠΆ ΡΡΠ°Π»ΡΠ½ΠΎΠ³ΠΎ Π»ΠΈΡΡΠ° ΠΎΡΠ½ΠΎΡΠΈΡΠ΅Π»ΡΠ½ΠΎ Π½Π΅ΡΠ»ΠΎΠΆΠ΅Π½, Π½ΠΎ Π½ΡΠΆΠ½ΠΎ ΡΡΠΈΡΡΠ²Π°ΡΡ, ΡΡΠΎ ΠΎΠ½ ΠΈΠΌΠ΅Π΅Ρ Π΄ΠΎΡΡΠ°ΡΠΎΡΠ½ΠΎ Π±ΠΎΠ»ΡΡΡΡ ΠΏΠΎ ΡΡΠ°Π²Π½Π΅Π½ΠΈΡ Ρ ΡΠ΅ΠΌ ΠΆΠ΅ ΠΏΠ΅Π½ΠΎΠΏΠ»Π°ΡΡΠΎΠΌ ΠΌΠ°ΡΡΡ, ΡΡΠΎ Π½Π΅ ΠΏΠΎΠ·Π²ΠΎΠ»ΡΠ΅Ρ ΡΠ°Π·ΠΌΠ΅ΡΡΠΈΡΡ Π΅Π³ΠΎ ΠΏΡΠΎΡΡΠΎ Π½Π° ΡΠΊΠΎΡΡ. ΠΠΎΡΡΠ΅Π±ΡΠ΅ΡΡΡ ΡΠΎΠ·Π΄Π°ΡΡ ΠΊΠ°ΡΠΊΠ°Ρ, Π° Π»ΠΈΡΡ ΠΏΡΠΎΡΠ²Π΅ΡΠ»ΠΈΡΡ Π΄ΡΠ΅Π»ΡΡ ΠΈ Π·Π°ΠΊΡΠ΅ΠΏΠΈΡΡ Π½Π° ΡΠ°ΠΌΠΎΡΠ΅Π·Π°Ρ . ΠΡΠ»ΠΈ Π²Ρ ΡΡΡΠΊΠΎ ΡΠΏΠΈΡΠ΅, Π±ΡΠ΄ΡΡΠ΅ Π³ΠΎΡΠΎΠ²Ρ ΠΊ ΡΠΎΠΌΡ, ΡΡΠΎ ΠΏΡΠΈ ΠΏΠΎΠΏΠ°Π΄Π°Π½ΠΈΠΈ ΠΊΠ°ΠΏΠ΅Π»Ρ Π΄ΠΎΠΆΠ΄Ρ Π½Π° ΠΌΠ΅ΡΠ°Π»Π»ΠΈΡΠ΅ΡΠΊΡΡ ΠΊΠΎΠ½ΡΡΡΡΠΊΡΠΈΡ Π±ΡΠ΄Π΅Ρ ΡΠ»ΡΡΠ΅Π½ ΡΠΏΠ΅ΡΠΈΡΠΈΡΠ΅ΡΠΊΠΈΠΉ ΡΡΠΌ.
ΠΠ°ΡΡΠΆΠ½Π°Ρ ΠΎΡΠ΄Π΅Π»ΠΊΠ° ΠΏΠ»Π°ΡΡΠΈΠΊΠΎΠ²ΡΡ ΠΎΠΊΠΎΠ½ ΠΎΡΠΈΠ½ΠΊΠΎΠ²Π°Π½Π½ΡΠΌΠΈ Π»ΠΈΡΡΠ°ΠΌΠΈ Π²ΠΏΠΎΠ»Π½Π΅ Π΄ΠΎΠΏΡΡΡΠΈΠΌΠ°, ΠΎΡΠΎΠ±Π΅Π½Π½ΠΎ Π΅ΡΠ»ΠΈ ΠΌΠ°ΡΠ΅ΡΠΈΠ°Π» Π²ΡΠ±ΡΠ°Π½ Π² ΡΠ²Π΅Ρ ΠΎΠΊΠΎΠ½Π½ΠΎΠΉ ΡΠ°ΠΌΡ ΠΈΠ»ΠΈ ΡΠ°ΡΠ°Π΄Π° Π·Π΄Π°Π½ΠΈΡ. ΠΡΠΈΠ½ΠΊΠΎΠ²Π°Π½Π½Π°Ρ ΠΊΠΎΠ½ΡΡΡΡΠΊΡΠΈΡ Π½Π΅ ΡΠΆΠ°Π²Π΅Π΅Ρ, ΠΎΠ±ΡΡΠ½ΠΎ ΠΎΠ½Π° ΠΏΠΎΠΊΡΡΡΠ° ΡΠΏΠ΅ΡΠΈΠ°Π»ΡΠ½ΠΎΠΉ ΠΏΠ»Π΅Π½ΠΊΠΎΠΉ, ΠΏΠΎΠ·Π²ΠΎΠ»ΡΡΡΠ΅ΠΉ ΡΠ»ΡΡΡΠΈΡΡ Π½Π΅ ΡΠΎΠ»ΡΠΊΠΎ ΡΠ²ΠΎΠΉΡΡΠ²Π° ΠΌΠ°ΡΠ΅ΡΠΈΠ°Π»Π°, Π½ΠΎ ΠΈ Π·Π°ΡΠΈΡΠΈΡΡ Π΅Π³ΠΎ ΠΎΡ Π½Π΅Π³Π°ΡΠΈΠ²Π½ΠΎΠ³ΠΎ Π²ΠΎΠ·Π΄Π΅ΠΉΡΡΠ²ΠΈΡ ΠΏΡΠΈΡΠΎΠ΄Ρ ΠΈ ΠΌΠ΅Π»ΠΊΠΈΡ ΠΏΠΎΠ²ΡΠ΅ΠΆΠ΄Π΅Π½ΠΈΠΉ. ΠΡΠΎΠ±Π΅Π½Π½ΠΎΠ³ΠΎ ΡΡ ΠΎΠ΄Π° ΠΊΠΎΠ½ΡΡΡΡΠΊΡΠΈΡ Π½Π΅ ΠΏΠΎΡΡΠ΅Π±ΡΠ΅Ρ, Π΅ΡΠ»ΠΈ ΠΈΠ·Π½Π°ΡΠ°Π»ΡΠ½ΠΎ Π³ΡΠ°ΠΌΠΎΡΠ½ΠΎ Π·Π°ΠΊΡΡΡΡ Π²ΡΠ΅ ΡΠ²Ρ. Π‘Π΄Π΅Π»Π°ΡΡ ΡΡΠΎ ΠΌΠΎΠΆΠ½ΠΎ ΠΏΡΠΈ ΠΏΠΎΠΌΠΎΡΠΈ Π³Π΅ΡΠΌΠ΅ΡΠΈΠΊΠ°.
ΠΠ°ΡΡΠΆΠ½ΡΠ΅ ΠΎΡΠΊΠΎΡΡ ΠΎΠΊΠΎΠ½ ΠΈΠ· ΠΌΠ΅ΡΠ°Π»Π»Π°ΠΠΎΠ½ΡΠ°ΠΆ ΠΏΠ»Π°ΡΡΠΈΠΊΠΎΠ²ΡΡ ΠΎΡΠΊΠΎΡΠΎΠ²
ΠΡΠ΄Π΅Π»ΠΊΠ° Π²Π½Π΅ΡΠ½ΠΈΡ ΠΎΡΠΊΠΎΡΠΎΠ² ΠΏΠ»Π°ΡΡΠΈΠΊΠΎΠ²ΡΡ ΠΎΠΊΠΎΠ½ β Π½Π°ΠΈΠ±ΠΎΠ»Π΅Π΅ ΡΠΈΠ·ΠΈΡΠ΅ΡΠΊΠΈ Π»Π΅Π³ΠΊΠΎΠ΅ Π·Π°Π½ΡΡΠΈΠ΅: ΠΏΡΠΈΡΠΈΠ½Π° Π·Π°ΠΊΠ»ΡΡΠ°Π΅ΡΡΡ Π² ΠΌΠ°Π»ΠΎΠΌ Π²Π΅ΡΠ΅ ΠΈ ΠΏΠΎΠ΄Π°ΡΠ»ΠΈΠ²ΠΎΡΡΠΈ ΠΌΠ°ΡΠ΅ΡΠΈΠ°Π»Π°. ΠΠ³ΠΎ Π»Π΅Π³ΠΊΠΎ ΠΎΡΡΠ΅Π·Π°ΡΡ ΠΎΠ±ΡΡΠ½ΠΎΠΉ Π½ΠΎΠΆΠΎΠ²ΠΊΠΎΠΉ, ΠΌΠΎΠΆΠ½ΠΎ ΠΏΡΠΈΠ΄Π°ΡΡ Π½ΡΠΆΠ½ΡΡ ΡΠΎΡΠΌΡ, ΠΏΠ»Π°ΡΡΠΈΠΊ ΡΠΏΠΎΡΠΎΠ±Π΅Π½ Π³Π½ΡΡΡΡΡ ΠΈ Π½Π΅ Π»ΠΎΠΌΠ°ΡΡΡΡ, ΠΊΡΠ΅ΠΏΠΈΡΡ ΠΌΠΎΠΆΠ½ΠΎ ΠΊΠ°ΠΊ Π½Π° ΡΠ°ΠΌΠΎΡΠ΅Π·Ρ, ΡΠ°ΠΊ ΠΈ Π½Π° ΡΠ°Π·Π»ΠΈΡΠ½ΡΠ΅ ΠΊΠ»Π΅ΠΉΠΊΠΈΠ΅ Π²Π΅ΡΠ΅ΡΡΠ²Π°, Π½Π°ΡΠΈΠ½Π°Ρ ΠΎΡ Π΄Π²ΡΡΡΠΎΡΠΎΠ½Π½Π΅Π³ΠΎ ΡΠΊΠΎΡΡΠ° ΠΈ Π·Π°ΠΊΠ°Π½ΡΠΈΠ²Π°Ρ ΡΠΏΠ΅ΡΠΈΠ°Π»ΡΠ½ΡΠΌ ΠΊΠ»Π΅Π΅ΠΌ ΠΈΠ»ΠΈ ΠΌΠΎΠ½ΡΠ°ΠΆΠ½ΠΎΠΉ ΠΏΠ΅Π½ΠΎΠΉ.
ΠΠ°ΠΊΡΠ΅ΠΏΠΈΡΡ ΠΎΡΠΊΠΎΡΡ ΠΌΠΎΠΆΠ½ΠΎ ΠΈ Π½Π° ΡΠΏΠ΅ΡΠΈΠ°Π»ΡΠ½ΡΠ΅ ΠΏΡΠΎΡΠΈΠ»ΠΈ, Π½ΠΎ ΡΠ°ΠΊΠΎΠΉ Π²Π°ΡΡΠ°Π½Ρ ΠΎΠ±ΠΎΠΉΠ΄Π΅ΡΡΡ Π΄ΠΎΡΠΎΠΆΠ΅, ΠΏΠΎΡΡΠΎΠΌΡ Π΄Π»Ρ ΠΎΠ±ΡΠ΅ΡΠ΅ΡΠΊΠΈ ΡΠ°ΡΠ΅ Π²ΡΠ΅Π³ΠΎ ΠΈΡΠΏΠΎΠ»ΡΠ·ΡΡΡ ΠΎΠ±ΡΡΠ½ΡΠ΅ Π΄Π΅ΡΠ΅Π²ΡΠ½Π½ΡΠ΅ ΡΠ΅ΠΉΠΊΠΈ. ΠΠΎΡΡΡΡΡ Π·Π° ΠΈΡ ΡΠΎΡ ΡΠ°Π½Π½ΠΎΡΡΡ Π½Π΅ ΡΡΠΎΠΈΡ, ΡΠ°ΠΊ ΠΊΠ°ΠΊ ΡΠ°ΡΠΏΠΎΠ»ΠΎΠΆΠ΅Π½Π½ΡΠΉ Π½Π° Π½ΠΈΡ ΠΎΡΠΊΠΎΡ ΡΠΌΠΎΠΆΠ΅Ρ Π·Π°ΡΠΈΡΠΈΡΡ ΡΠ²ΠΎΠΉ ΠΊΠ°ΡΠΊΠ°Ρ ΠΎΡ ΠΏΠΎΠΏΠ°Π΄Π°Π½ΠΈΡ Π²Π»Π°Π³ΠΈ.
Π§Π΅ΠΌ ΠΎΡΠ΄Π΅Π»Π°ΡΡ ΠΎΡΠΊΠΎΡΡ Π½Π° ΠΎΠΊΠ½Π°Ρ Ρ ΡΠ»ΠΈΡΡ?
Π ΡΠΎΠ²ΡΠ΅ΠΌΠ΅Π½Π½ΠΎΠΌ ΡΡΡΠΎΠΈΡΠ΅Π»ΡΡΡΠ²Π΅ ΡΠ°ΡΡΠΎ ΠΏΡΠΈΠΌΠ΅Π½ΡΠ΅ΡΡΡ ΡΠ°ΠΊΠΎΠΉ ΠΌΠ°ΡΠ΅ΡΠΈΠ°Π», ΠΊΠ°ΠΊ ΡΠ°ΠΉΠ΄ΠΈΠ½Π³. ΠΠ³ΠΎ ΠΏΡΠΈΠΌΠ΅Π½Π΅Π½ΠΈΠ΅ Π΄ΠΎΠ²ΠΎΠ»ΡΠ½ΠΎ ΡΠ΄ΠΎΠ±Π½ΠΎ, Π° Π²ΡΠ±ΠΎΡ Π·Π°Π²ΠΈΡΠΈΡ ΠΎΡ ΡΠΎΠ³ΠΎ, ΠΊΠ°ΠΊΠΎΠΉ ΡΠΈΡΠΈΠ½Ρ Π²Π°ΡΠΈ ΠΎΡΠΊΠΎΡΡ. ΠΡΠ»ΠΈ ΠΎΠ½ΠΈ Π΅Π²ΡΠΎΠΏΠ΅ΠΉΡΠΊΠΈΡ ΡΡΠ°Π½Π΄Π°ΡΡΠΎΠ², ΡΠΎ ΠΏΠΎΡΡΠ΅Π±ΡΠ΅ΡΡΡ ΡΠ·ΠΊΠΈΠΉ ΡΠ°ΠΉΠ΄ΠΈΠ½Π³ ΡΠΈΡΠΈΠ½ΠΎΠΉ Π½Π΅ Π±ΠΎΠ»Π΅Π΅ 12 ΡΠΌ, ΠΏΡΠΈ ΡΡΠ°Π½Π΄Π°ΡΡΠ½ΡΡ ΡΠΎΡΡΠΈΠΉΡΠΊΠΈΡ ΡΠ°Π·ΠΌΠ΅ΡΠ°Ρ Π½ΡΠΆΠ½Π° ΠΏΠΎΠ»ΠΎΡΠ° Π½Π΅ ΠΌΠ΅Π½Π΅Π΅ 22 ΡΠΌ.
ΠΠΎΠ½ΡΠ°ΠΆ ΠΎΡΠΊΠΎΡΠΎΠ² ΠΈΠ· ΡΠ°ΠΉΠ΄ΠΈΠ½Π³Π°ΠΡΠ΅ΠΏΠ»Π΅Π½ΠΈΠ΅ ΠΌΠ°ΡΠ΅ΡΠΈΠ°Π»Π° ΠΏΡΠΎΠΈΡΡ ΠΎΠ΄ΠΈΡ Π±Π»Π°Π³ΠΎΠ΄Π°ΡΡ ΠΏΡΠΈΠΌΠ΅Π½Π΅Π½ΠΈΡ ΡΠΈΠ½ΠΈΡΠ½ΠΎΠ³ΠΎ ΠΏΡΠΎΡΠΈΠ»Ρ, ΠΊΡΠΏΠΈΡΡ Π΅Π³ΠΎ ΠΌΠΎΠΆΠ½ΠΎ Π² Π³ΠΎΡΠΎΠ²ΠΎΠΌ Π²ΠΈΠ΄Π΅. ΠΠΎΠ½ΡΠ°ΠΆ ΠΏΡΠΎΡΡ. Π‘Π½Π°ΡΠ°Π»Π° ΠΊ ΡΠ°ΡΠ°Π΄Ρ ΠΊΡΠ΅ΠΏΡΡ J-ΠΏΡΠΎΡΠΈΠ»Ρ, Π·Π°ΡΠ΅ΠΌ ΠΏΡΠΈΠΌΠ΅Π½ΡΠ΅ΡΡΡ ΡΠ°ΡΠΊΠ°, ΠΎΠ±Π»Π΅Π³ΡΠ°ΡΡΠ°Ρ ΠΈ ΡΠ΄Π΅ΡΠ΅Π²Π»ΡΡΡΠ°Ρ ΠΌΠΎΠ½ΡΠ°ΠΆ. Π‘Π°ΠΉΠ΄ΠΈΠ½Π³ ΠΏΡΠΎΡΡΠΎ Π²ΡΡΠ°Π²Π»ΡΠ΅ΡΡΡ Π² ΠΏΠ°Π·Ρ, Π² ΠΈΡΠΎΠ³Π΅ ΠΏΠΎΠ»ΡΡΠ°Π΅ΡΡΡ Π³Π΅ΡΠΌΠ΅ΡΠΈΡΠ½Π°Ρ ΠΏΠΎΠ²Π΅ΡΡ Π½ΠΎΡΡΡ, Π½Π΅ ΠΈΠΌΠ΅ΡΡΠ°Ρ Π²ΠΈΠ·ΡΠ°Π»ΡΠ½ΠΎ Π·Π°ΠΌΠ΅ΡΠ½ΡΡ ΡΡΡΠΊΠΎΠ².
Π‘Π°ΠΉΠ΄ΠΈΠ½Π³ Π²ΡΠΏΡΡΠΊΠ°Π΅ΡΡΡ Π² ΡΠ°Π·Π½ΡΡ ΡΠ²Π΅ΡΠΎΠ²ΡΡ ΠΎΡΠΎΡΠΌΠ»Π΅Π½ΠΈΡΡ , ΠΏΠΎΡΡΠΎΠΌΡ, Π΅ΡΠ»ΠΈ ΠΏΠΎΠ΄ΠΎΠ±ΡΠ°ΡΡ Π΅Π³ΠΎ ΠΏΡΠ°Π²ΠΈΠ»ΡΠ½ΠΎ, ΠΎΠ½ Π±ΡΠ΄Π΅Ρ Π³Π°ΡΠΌΠΎΠ½ΠΈΡΠΎΠ²Π°ΡΡ Ρ Π»ΡΠ±ΡΠΌΠΈ ΠΎΠΊΠ½Π°ΠΌΠΈ ΠΈ ΠΎΡΠ΄Π΅Π»ΠΎΡΠ½ΡΠΌΠΈ ΠΌΠ°ΡΠ΅ΡΠΈΠ°Π»Π°ΠΌΠΈ ΡΠ°ΡΠ°Π΄Π°. Π’Π°ΠΊΠΎΠΉ ΠΏΠΎΠ΄Ρ ΠΎΠ΄ ΠΎΠ±ΠΎΠΉΠ΄Π΅ΡΡΡ Π½Π΅ΠΌΠ½ΠΎΠ³ΠΎ Π΄ΠΎΡΠΎΠΆΠ΅, ΡΠ΅ΠΌ ΠΏΠ»Π°ΡΡΠΈΠΊ, Π½ΠΎ ΠΎΠ±Π΅ΡΠΏΠ΅ΡΠΈΡ Π±ΠΎΠ»Π΅Π΅ Π²ΡΡΠΎΠΊΠΎΠ΅ ΠΊΠ°ΡΠ΅ΡΡΠ²ΠΎ ΠΎΡΠΊΠΎΡΠΎΠ².
ΠΡΠ²ΠΎΠ΄: Π²ΡΠ±ΠΎΡ ΡΠΎΠ³ΠΎ, ΡΠ΅ΠΌ ΠΎΡΠ΄Π΅Π»Π°ΡΡ ΠΎΡΠΊΠΎΡΡ Π½Π° ΠΎΠΊΠ½Π°Ρ Ρ ΡΠ»ΠΈΡΡ, Π΄ΠΎΡΡΠ°ΡΠΎΡΠ½ΠΎ ΡΠΈΡΠΎΠΊ. ΠΡΠ΅ Π²Π°ΡΠΈΠ°Π½ΡΡ ΠΏΡΠΈΠ΅ΠΌΠ»Π΅ΠΌΡ, ΠΏΠΎΡΡΠΎΠΌΡ Π²Π±ΠΈΡΠ°ΡΡ Π½ΡΠΆΠ½ΠΎ ΠΎΡΠ½ΠΎΡΠΈΡΠ΅Π»ΡΠ½ΠΎ ΡΠΈΠ½Π°Π½ΡΠΎΠ²ΡΡ Π·Π°ΡΡΠ°Ρ ΠΈ ΡΠ»ΠΎΠΆΠ½ΠΎΡΡΠΈ ΠΌΠΎΠ½ΡΠ°ΠΆΠ°, ΡΡΠΎ Π΄Π»Ρ ΠΊΠ°ΠΆΠ΄ΠΎΠ³ΠΎ ΠΏΠΎΠΊΡΠΏΠ°ΡΠ΅Π»Ρ ΡΠ²Π»ΡΠ΅ΡΡΡ ΠΈΠ½Π΄ΠΈΠ²ΠΈΠ΄ΡΠ°Π»ΡΠ½ΡΠΌ ΠΏΠ°ΡΠ°ΠΌΠ΅ΡΡΠΎΠΌ.
ΠΠΈΠ΄Π΅ΠΎ: ΠΠ°ΡΡΠΆΠ½ΡΠΉ ΠΎΡΠΊΠΎΡ ΡΠ²ΠΎΠΈΠΌΠΈ ΡΡΠΊΠ°ΠΌΠΈ
ΠΠΈΠ΄Π΅ΠΎ: Π‘Π°ΠΉΠ΄ΠΈΠ½Π³. ΠΠ±ΡΠΈΠ²ΠΊΠ° ΠΎΠΊΠ½Π° ΡΠ°ΠΉΠ΄ΠΈΠ½Π³ΠΎΠΌ. ΠΡΠΎΡΠΌΠ»Π΅Π½ΠΈΠ΅ ΠΎΠΊΠ½Π° ΡΠ°ΠΉΠ΄ΠΈΠ½Π³ΠΎΠΌ. ΠΡΠΈΠΎΠΊΠΎΠ½Π½Π°Ρ ΠΏΠ»Π°Π½ΠΊΠ°.
sdelalremont.ru
ΠΡΠ΄Π΅Π»ΠΊΠ° ΠΎΠΊΠΎΠ½Π½ΡΡ ΠΎΡΠΊΠΎΡΠΎΠ² ΡΠ½Π°ΡΡΠΆΠΈ β ΠΌΠ°ΡΠ΅ΡΠΈΠ°Π» ΠΈ ΡΡΠ°ΠΏΡ ΡΠ°Π±ΠΎΡ + Π²ΠΈΠ΄Π΅ΠΎ
ΠΠΎΡΠ»Π΅ Π·Π°ΠΌΠ΅Π½Ρ ΠΎΠΊΠΎΠ½ Π½Π°ΡΡΠΆΠ½ΡΠ΅ ΠΏΡΠΎΠ΅ΠΌΡ Π²ΡΠ³Π»ΡΠ΄ΡΡ Π½Π΅ΡΡΡΠ΅ΡΠΈΡΠ½ΠΎ, Π° Π·Π½Π°ΡΠΈΡ, Π½ΡΠΆΠ½ΠΎ ΠΏΡΠΈΠ²Π΅ΡΡΠΈ ΠΈΡ Π² ΠΏΠΎΠ΄ΠΎΠ±Π°ΡΡΠΈΠΉ Π²ΠΈΠ΄. ΠΠ΅ΠΎΠ±Ρ ΠΎΠ΄ΠΈΠΌΠ° ΠΎΡΠ΄Π΅Π»ΠΊΠ° ΠΎΠΊΠΎΠ½Π½ΡΡ ΠΎΡΠΊΠΎΡΠΎΠ² ΡΠ½Π°ΡΡΠΆΠΈ β ΡΡΠΎΠ±Ρ ΠΎΠΊΠ½ΠΎ Π²ΡΠ³Π»ΡΠ΄Π΅Π»ΠΎ ΠΏΠΎ-Π½Π°ΡΡΠΎΡΡΠ΅ΠΌΡ Ρ ΠΎΡΠΎΡΠΎ.
ΠΠΎΡΠ΅ΠΌΡ Π½Π΅ΠΎΠ±Ρ ΠΎΠ΄ΠΈΠΌΠΎ ΠΏΡΠΎΠ²Π΅ΡΡΠΈ Π½Π°ΡΡΠΆΠ½ΡΡ ΠΎΡΠ΄Π΅Π»ΠΊΡ ΠΎΡΠΊΠΎΡΠΎΠ²?
ΠΠ΅ ΡΡΠΎΠΈΡ Π΄ΡΠΌΠ°ΡΡ, ΡΡΠΎ ΠΏΠΎΡΠ»Π΅ ΡΡΡΠ°Π½ΠΎΠ²ΠΊΠΈ Π½ΠΎΠ²ΡΡ ΠΎΠΊΠΎΠ½ ΡΠ΅ΠΌΠΎΠ½ΡΠ½ΡΠ΅ ΡΠ°Π±ΠΎΡΡ Π² ΠΊΠ²Π°ΡΡΠΈΡΠ΅ Π·Π°ΠΊΠΎΠ½ΡΠ°ΡΡΡ. Π£Π²Ρ, Π½ΠΎ Π½Π΅ΠΌΠ½ΠΎΠ³ΠΈΠ΅ ΡΡΡΠΎΠΈΡΠ΅Π»ΠΈ ΠΏΡΠΎΠ²ΠΎΠ΄ΡΡ ΠΎΡΠ΄Π΅Π»ΠΊΡ Π½Π°ΡΡΠΆΠ½ΠΎΠΉ ΡΠ°ΡΡΠΈ ΠΏΡΠΎΠ΅ΠΌΠ°, Π° Π±ΠΎΠ»Π΅Π΅ 70% ΠΏΠΎΡΡΠ΅Π±ΠΈΡΠ΅Π»Π΅ΠΉ ΡΡΡΠΎΠΈΡΠ΅Π»ΡΠ½ΡΡ ΡΡΠ»ΡΠ³ ΡΠ°ΠΊ ΠΈ Π½Π΅ Π·Π°ΠΊΠ°Π½ΡΠΈΠ²Π°ΡΡ Π½Π°ΡΠ°ΡΡΠ΅ ΡΠ°Π±ΠΎΡΡ, ΡΡΠΈΡΠ°Ρ ΡΡΠΎ Π»ΠΈΡΠ½Π΅ΠΉ ΡΡΠ°ΡΠΎΠΉ Π²ΡΠ΅ΠΌΠ΅Π½ΠΈ ΠΈ ΡΡΠ΅Π΄ΡΡΠ².

ΠΠΎ Π½Π°ΡΡΠΆΠ½Π°Ρ ΠΎΡΠ΄Π΅Π»ΠΊΠ° ΠΎΠΊΠΎΠ½Π½ΡΡ ΠΎΡΠΊΠΎΡΠΎΠ² ΠΏΠΎΠ·Π²ΠΎΠ»ΠΈΡ Π½Π΅ Π΄ΠΎΠΏΡΡΡΠΈΡΡ ΠΏΠΎΡΠ²Π»Π΅Π½ΠΈΡ ΡΠ΅ΡΡΠ΅Π·Π½ΡΡ ΠΏΡΠΎΠ±Π»Π΅ΠΌ.
ΠΡΡΠ°Π²Π»Π΅Π½Π½ΡΠ΅ Π±Π΅Π· ΠΎΡΠ΄Π΅Π»ΠΊΠΈ ΠΎΡΠΊΠΎΡΡ β Π½Π΅ ΡΠΎΠ»ΡΠΊΠΎ Π½Π΅ΠΊΡΠ°ΡΠΈΠ²ΠΎ. ΠΠ΅ΠΎΠ±ΡΠ°Π±ΠΎΡΠ°Π½Π½ΡΠ΅ ΠΎΡΠΊΠΎΡΡ ΡΠΎ Π²ΡΠ΅ΠΌΠ΅Π½Π΅ΠΌ ΠΏΠ°Π³ΡΠ±Π½ΠΎ ΡΠΊΠ°ΠΆΡΡΡΡ Π½Π° Π³Π΅ΡΠΌΠ΅ΡΠΈΠ·Π°ΡΠΈΠΈ ΠΏΡΠΎΠ΅ΠΌΠΎΠ². ΠΠΎΠ½ΡΠ°ΠΆΠ½Π°Ρ ΠΏΠ΅Π½Π°, Π΄Π°ΠΆΠ΅ Π΅ΡΠ»ΠΈ ΠΎΠ½Π° Π°ΠΊΠΊΡΡΠ°ΡΠ½ΠΎ ΠΎΠ±ΡΠ΅Π·Π°Π½Π°, ΡΠΎ Π²ΡΠ΅ΠΌΠ΅Π½Π΅ΠΌ Π½Π°ΡΠ½Π΅Ρ ΡΠ°Π·ΡΡΡΠ°ΡΡΡΡ ΠΏΠΎΠ΄ Π²ΠΎΠ·Π΄Π΅ΠΉΡΡΠ²ΠΈΠ΅ΠΌ Π£Π€-ΠΈΠ·Π»ΡΡΠ΅Π½ΠΈΡ ΠΈ Π²Π΅ΡΡΠ°. Π‘ΠΎΠ»Π½ΡΠ΅ ΡΠ΅ΡΠ΅Π· Π½Π΅ΡΠΊΠΎΠ»ΡΠΊΠΎ Π»Π΅Ρ ΠΏΡΠ΅Π²ΡΠ°ΡΠΈΡ ΠΏΠ΅Π½Ρ Π² ΠΊΡΠΎΡΠΊΡ, ΠΊΠΎΡΠΎΡΠ°Ρ ΠΌΠ΅Π΄Π»Π΅Π½Π½ΠΎ, Π½ΠΎ Π²Π΅ΡΠ½ΠΎ Π±ΡΠ΄Π΅Ρ Π²ΡΠΏΠ°Π΄Π°ΡΡ ΠΈΠ· ΠΏΡΠΎΠ΅ΠΌΠ°.
Π ΠΈΡΠΎΠ³Π΅ ΡΡΠΎ ΠΏΡΠΈΠ²Π΅Π΄Π΅Ρ ΠΊ ΡΠΎΠΌΡ, ΡΡΠΎ Π² Π²Π°ΡΠ΅ΠΌ Π΄ΠΎΠΌΠ΅ Β«ΠΏΠΎΡΠ΅Π»ΡΡΡΡΒ» ΡΠΈΠ»ΡΠ½Π΅ΠΉΡΠΈΠ΅ ΡΠΊΠ²ΠΎΠ·Π½ΡΠΊΠΈ. ΠΠ΅ΡΠ΅Π΄ΠΊΠΎ ΠΌΠΎΠ½ΡΠ°ΠΆΠ½ΠΎΠΉ ΠΏΠ΅Π½ΠΎΠΉ ΠΈΠ½ΡΠ΅ΡΠ΅ΡΡΡΡΡΡ ΠΈ ΠΏΡΠΈΡΡ, ΠΎΡΠΊΡΡΡΠ²Π°ΡΡΠΈΠ΅ Π½Π΅Π±ΠΎΠ»ΡΡΠΈΠ΅ ΠΊΡΡΠΎΡΠΊΠΈ ΠΌΠ°ΡΠ΅ΡΠΈΠ°Π»Π° Π΄Π»Ρ ΡΠΎΠ·Π΄Π°Π½ΠΈΡ Π³Π½Π΅Π·Π΄. Π§ΡΠΎΠ±Ρ Π½Π΅ Π΄ΠΎΠΏΡΡΡΠΈΡΡ ΡΠ°ΠΊΠΈΡ
ΡΠ΅ΡΡΠ΅Π·Π½ΡΡ
ΡΠ°Π·ΡΡΡΠ΅Π½ΠΈΠΉ, Π½Π΅ΠΎΠ±Ρ
ΠΎΠ΄ΠΈΠΌΠΎ Π·Π½Π°ΡΡ, ΠΊΠ°ΠΊ ΠΈ ΡΠ΅ΠΌ ΠΎΡΠ΄Π΅Π»Π°ΡΡ Π½Π°ΡΡΠΆΠ½ΡΠ΅ ΠΎΡΠΊΠΎΡΡ ΠΎΠΊΠΎΠ½.
ΠΠ°ΡΠΈΠ°Π½ΡΡ ΠΎΡΠ΄Π΅Π»ΠΊΠΈ Π½Π°ΡΡΠΆΠ½ΡΡ ΠΎΡΠΊΠΎΡΠΎΠ²: Π²ΡΠ±ΠΈΡΠ°Π΅ΠΌ ΠΌΠ°ΡΠ΅ΡΠΈΠ°Π»
Π‘ΡΡΠ΅ΡΡΠ²ΡΡΡ ΡΠ°Π·Π»ΠΈΡΠ½ΡΠ΅ ΡΠΏΠΎΡΠΎΠ±Ρ ΠΏΡΠΈΠ΄Π°ΡΡ Π·Π°ΠΊΠΎΠ½ΡΠ΅Π½Π½ΡΠΉ Π²ΠΈΠ΄ Π½Π°ΡΡΠΆΠ½ΡΠΌ ΠΎΡΠΊΠΎΡΠ°ΠΌ. ΠΠ°ΠΆΠ΄ΡΠΉ ΠΈΠ· Π½ΠΈΡ ΠΈΠΌΠ΅Π΅Ρ ΡΠ²ΠΎΠΈ ΠΎΡΠΎΠ±Π΅Π½Π½ΠΎΡΡΠΈ, Ρ Π°ΡΠ°ΠΊΡΠ΅ΡΠΈΡΡΠΈΠΊΠΈ, ΠΏΡΠ΅ΠΈΠΌΡΡΠ΅ΡΡΠ²Π° ΠΈ Π½Π΅Π΄ΠΎΡΡΠ°ΡΠΊΠΈ, ΡΠ°Π·Π»ΠΈΡΠ°ΡΡΡΡ Π²Π°ΡΠΈΠ°Π½ΡΡ ΠΎΡΠ΄Π΅Π»ΠΊΠΈ Π²ΡΠ΅ΠΌΠ΅Π½Π΅ΠΌ ΠΏΡΠΎΠ²Π΅Π΄Π΅Π½ΠΈΡ ΡΠ°Π±ΠΎΡ ΠΈ ΡΡΠΎΠΈΠΌΠΎΡΡΡΡ Π²ΡΠΏΠΎΠ»Π½Π΅Π½ΠΈΡ.
ΠΠΎΠ·ΠΌΠΎΠΆΠ½ΡΠ΅ Π²Π°ΡΠΈΠ°Π½ΡΡ ΠΎΡΠ΄Π΅Π»ΠΊΠΈ:
- Π‘Π°ΠΌΡΠΉ Π΄ΡΠ΅Π²Π½ΠΈΠΉ ΠΈ ΡΠΊΠΎΠ½ΠΎΠΌΠΈΡΠ½ΡΠΉ Π²Π°ΡΠΈΠ°Π½Ρ β ΠΎΡΡΡΡΠΊΠ°ΡΡΡΠΈΠ²Π°Π½ΠΈΠ΅ ΠΎΡΠΊΠΎΡΠΎΠ². Π Π°Π±ΠΎΡΠ° Π΄ΠΎΡΡΠ°ΡΠΎΡΠ½ΠΎ ΠΏΡΠΎΡΡΠ°Ρ: ΡΡΡ
ΡΡ ΡΠΌΠ΅ΡΡ ΡΠ°Π·Π²ΠΎΠ΄ΠΈΠΌ Π²ΠΎΠ΄ΠΎΠΉ ΠΈ ΠΏΡΠΎΠ²ΠΎΠ΄ΠΈΠΌ ΠΎΡΠ΄Π΅Π»ΠΊΡ. ΠΠΎΡΠ»Π΅ ΡΠΎΠ³ΠΎ, ΠΊΠ°ΠΊ ΡΠΌΠ΅ΡΡ Π²ΡΡΠΎΡ
Π½Π΅Ρ, Π΅Π΅ Π·Π°ΡΠΊΡΡΠΈΠ²Π°ΡΡ ΠΈ ΡΠ»ΠΈΡΡΡΡ, Π·Π°ΡΠ΅ΠΌ ΠΎΠΊΡΠ°ΡΠΈΠ²Π°ΡΡ. Π’Π°ΠΊΠ°Ρ ΠΎΡΠ΄Π΅Π»ΠΊΠ° ΠΎΡΠΊΠΎΡΠΎΠ² ΠΎΠΊΠΎΠ½ ΡΠ½Π°ΡΡΠΆΠΈ Π΄Π΅ΡΠ΅Π²Π°, ΡΡΠΎ Π΄Π»Ρ ΠΌΠ½ΠΎΠ³ΠΈΡ
ΡΠ²Π»ΡΠ΅ΡΡΡ ΡΠ΅ΡΠ°ΡΡΠΈΠΌ ΡΠ°ΠΊΡΠΎΡΠΎΠΌ. ΠΡΠ°Π²Π΄Π°, ΡΡΡ Π΅ΡΡΡ ΠΈ ΡΠ²ΠΎΠΉ ΠΌΠΈΠ½ΡΡ β Π΄Π»ΠΈΡΠ΅Π»ΡΠ½ΠΎΡΡΡ Π²ΡΠΏΠΎΠ»Π½Π΅Π½ΠΈΡ ΡΠ°Π±ΠΎΡ. Π ΡΡΠ΅Π΄Π½Π΅ΠΌ Π½Π° ΠΎΡΠ΄Π΅Π»ΠΊΡ ΠΎΡΠΊΠΎΡΠΎΠ² Π΄Π°Π½Π½ΡΠΌ ΡΠΏΠΎΡΠΎΠ±ΠΎΠΌ ΡΡ
ΠΎΠ΄ΠΈΡ Π΄ΠΎ 10 Π΄Π½Π΅ΠΉ. Π ΠΌΠΈΠ½ΡΡΠ°ΠΌ ΠΌΠΎΠΆΠ½ΠΎ ΠΎΡΠ½Π΅ΡΡΠΈ Β«Ρ
ΠΎΠ»ΠΎΠ΄Π½ΠΎΡΡΡΒ» ΠΎΡΠΊΠΎΡΠΎΠ²: ΠΌΠ΅ΡΡΠ° ΠΏΡΠΈΠΌΡΠΊΠ°Π½ΠΈΡ ΠΎΡΠΊΠΎΡΠΎΠ² ΠΊ ΡΠ°ΠΌΠ°ΠΌ ΠΌΠΎΠΆΠ΅Ρ ΠΏΡΠΎΠΌΠ΅ΡΠ·Π°ΡΡ, Π² ΡΠ²ΡΠ·ΠΈ Ρ ΡΠ΅ΠΌ ΠΎΠ±ΡΠ°Π·ΡΠ΅ΡΡΡ ΠΊΠΎΠ½Π΄Π΅Π½ΡΠ°Ρ, ΠΏΡΠΈΠ²ΠΎΠ΄ΡΡΠΈΠΉ ΠΊ ΠΏΠΎΡΠ²Π»Π΅Π½ΠΈΡ Π³ΡΠΈΠ±ΠΊΠ°. ΠΡΠ»ΠΈ ΠΌΡ Π³ΠΎΠ²ΠΎΡΠΈΠΌ ΠΏΡΠΎ ΠΏΠ»Π°ΡΡΠΈΠΊΠΎΠ²ΡΠ΅ ΠΎΠΊΠ½Π°, ΡΠΎ Π½Π΅ΡΠΎΠΎΡΠ²Π΅ΡΡΡΠ²ΠΈΠ΅ ΡΡΡΠΊΠ°ΡΡΡΠ½ΠΎΠΉ ΡΠΌΠ΅ΡΠΈ ΠΈ ΠΠΠ₯-ΠΏΡΠΎΡΠΈΠ»Π΅ΠΉ ΠΌΠΎΠΆΠ΅Ρ ΡΡΠ°ΡΡ ΠΏΡΠΈΡΠΈΠ½ΠΎΠΉ Π½Π΅ΠΏΡΠΎΡΠ½ΠΎΠ³ΠΎ ΡΠΎΠ΅Π΄ΠΈΠ½Π΅Π½ΠΈΡ. Π ΡΠ΅Π·ΡΠ»ΡΡΠ°ΡΠ΅ Π² ΡΠΊΠΎΡΠΎΠΌ Π²ΡΠ΅ΠΌΠ΅Π½ΠΈ ΡΡΡΠΊΠ°ΡΡΡΠΊΠ° ΠΌΠΎΠΆΠ΅Ρ ΠΎΡΡΠ»ΠΎΠΈΡΡΡΡ ΠΎΡ ΠΎΠΊΠ½Π°, Π° Π·Π½Π°ΡΠΈΡ, ΡΠ°Π±ΠΎΡΡ ΠΏΡΠΈΠ΄Π΅ΡΡΡ ΠΏΡΠΎΠ²ΠΎΠ΄ΠΈΡΡ Π·Π°Π½ΠΎΠ²ΠΎ.

- ΠΡΠΏΠΎΠ»ΡΠ·ΠΎΠ²Π°Π½ΠΈΠ΅ Π³ΠΈΠΏΡΠΎΠΊΠ°ΡΡΠΎΠ½Π°. ΠΠΈΠΏΡΠΎΠΊΠ°ΡΡΠΎΠ½ ΡΡΠΈΡΠ°Π΅ΡΡΡ Π±ΠΎΠ»Π΅Π΅ ΡΠΎΠ²ΡΠ΅ΠΌΠ΅Π½Π½ΡΠΌ ΠΌΠ°ΡΠ΅ΡΠΈΠ°Π»ΠΎΠΌ Π΄Π»Ρ ΠΎΡΠ΄Π΅Π»ΠΊΠΈ ΠΎΠΊΠΎΠ½Π½ΡΡ ΠΎΡΠΊΠΎΡΠΎΠ². Π Π΅Π³ΠΎ ΠΎΡΠ½ΠΎΠ²Π½ΡΠΌ ΠΏΡΠ΅ΠΈΠΌΡΡΠ΅ΡΡΠ²Π°ΠΌ ΠΎΡΠ½ΠΎΡΡΡ ΠΏΡΠΎΡΡΠΎΡΡ ΡΠ°Π±ΠΎΡΡ ΠΈ Ρ ΠΎΡΠΎΡΠΈΠΉ ΡΠ΅Π·ΡΠ»ΡΡΠ°Ρ Π² Π²ΠΈΠ΄Π΅ Π³Π»Π°Π΄ΠΊΠΎΠΉ ΠΏΠΎΠ²Π΅ΡΡ Π½ΠΎΡΡΠΈ, ΠΊΠΎΡΠΎΡΡΡ ΠΌΠΎΠΆΠ½ΠΎ ΠΏΡΠΎΡΡΠΎ ΠΏΠΎΠΊΡΠ°ΡΠΈΡΡ. ΠΡΠ°Π²Π΄Π°, ΡΠ»Π΅Π΄ΡΠ΅Ρ ΡΡΠΈΡΡΠ²Π°ΡΡ, ΡΡΠΎ ΠΎΠ½ΠΈ ΠΏΡΠΎΡΠ»ΡΠΆΠ°Ρ Π΄ΠΎΠ»Π³ΠΎ Π»ΠΈΡΡ Π² ΡΠΎΠΌ ΡΠ»ΡΡΠ°Π΅, Π΅ΡΠ»ΠΈ Π²Ρ Π³ΡΠ°ΠΌΠΎΡΠ½ΠΎ ΠΏΡΠΎΠ²Π΅Π΄Π΅ΡΠ΅ ΠΏΠΎΠ΄Π³ΠΎΡΠΎΠ²ΠΊΡ ΠΏΠΎΠ²Π΅ΡΡ Π½ΠΎΡΡΠΈ: ΠΎΠ±ΡΠ°Π±ΠΎΡΠ°Π΅ΡΠ΅ Π΅Π΅ Π°Π½ΡΠΈΠ±Π°ΠΊΡΠ΅ΡΠΈΠ°Π»ΡΠ½ΠΎΠΉ ΠΏΡΠΎΠΏΠΈΡΠΊΠΎΠΉ. ΠΡΠΊΠΎΡΡ ΠΈΠ· Π³ΠΈΠΏΠΎΡΠΊΠ°ΡΡΠΎΠ½Π° ΠΈΠΌΠ΅ΡΡ ΠΈ Π½Π΅Π΄ΠΎΡΡΠ°ΡΠΊΠΈ. Π Π³Π»Π°Π²Π½ΠΎΠΌΡ ΠΌΠΈΠ½ΡΡΡ Π² Π΄Π°Π½Π½ΠΎΠΌ ΡΠ»ΡΡΠ°Π΅ ΠΎΡΠ½ΠΎΡΡΡ ΠΎΡΡΡΡΡΡΠ²ΠΈΠ΅ Π²Π»Π°Π³ΠΎΡΡΠΎΠΉΠΊΠΎΡΡΠΈ ΠΈ Π½Π΅ΠΎΠ±Ρ ΠΎΠ΄ΠΈΠΌΠΎΡΡΡ ΠΏΡΠΎΠ²Π΅Π΄Π΅Π½ΠΈΡ ΠΏΠ΅ΡΠΈΠΎΠ΄ΠΈΡΠ΅ΡΠΊΠΎΠ³ΠΎ ΡΠ΅ΠΌΠΎΠ½ΡΠ°.
- ΠΡΠΏΠΎΠ»ΡΠ·ΠΎΠ²Π°Π½ΠΈΠ΅ ΠΏΠ»Π°ΡΡΠΈΠΊΠΎΠ²ΡΡ
ΠΎΡΠΊΠΎΡΠΎΠ². Π‘Π°ΠΌΡΠΉ ΡΠΎΠ²ΡΠ΅ΠΌΠ΅Π½Π½ΡΠΉ ΡΠΏΠΎΡΠΎΠ± β ΠΈΡΠΏΠΎΠ»ΡΠ·ΠΎΠ²Π°Π½ΠΈΠ΅ ΠΎΡΠΊΠΎΡΠΎΠ² ΠΠΠ₯. ΠΠ° ΡΡΠ΅Ρ ΡΠΈΡΠΎΠΊΠΎΠ³ΠΎ Π²ΡΠ±ΠΎΡΠ° ΡΠ²Π΅ΡΠΎΠ² ΠΈ ΡΠ΅Ρ
Π½ΠΈΡΠ΅ΡΠΊΠΈΡ
ΠΎΡΠΎΠ±Π΅Π½Π½ΠΎΡΡΠ΅ΠΉ, ΡΠ°ΠΊΠΈΠ΅ ΠΈΠ·Π΄Π΅Π»ΠΈΡ ΠΏΠΎΠΌΠΎΠ³ΡΡ ΡΡΡΠ΅ΠΊΡΠ½ΠΎ ΠΎΡΠΎΡΠΌΠΈΡΡ ΠΎΡΠΊΠΎΡΡ Π»ΡΠ±ΠΎΠΉ ΡΠΎΡΠΌΡ, Π²ΠΊΠ»ΡΡΠ°Ρ ΡΡΠΊΠ΅ΡΡ ΠΈ Π°ΡΠΊΠΈ. ΠΡΠΎΠΌΠ΅ ΡΠΎΠ³ΠΎ, ΠΌΠ°ΡΠ΅ΡΠΈΠ°Π» ΠΎΡΠΊΠΎΡΠ° Π±ΡΠ΄Π΅Ρ ΠΏΠΎΠ»Π½ΠΎΡΡΡΡ ΡΠΎΠΎΡΠ²Π΅ΡΡΡΠ²ΠΎΠ²Π°ΡΡ ΠΌΠ°ΡΠ΅ΡΠΈΠ°Π»Ρ ΠΎΠΊΠΎΠ½Π½ΠΎΠ³ΠΎ ΠΏΡΠΎΡΠΈΠ»Ρ (Π΅ΡΠ»ΠΈ ΠΌΡ Π³ΠΎΠ²ΠΎΡΠΈΠΌ ΠΏΡΠΎ ΠΠΠ₯ ΠΎΠΊΠ½Π°), ΠΈΠΌΠ΅Ρ Π°Π½Π°Π»ΠΎΠ³ΠΈΡΠ½ΡΠΉ ΠΊΠΎΡΡΡΠΈΡΠΈΠ΅Π½Ρ ΡΠ°ΡΡΠΈΡΠ΅Π½ΠΈΡ ΠΏΡΠΈ ΡΠ°Π·Π½ΠΎΠΎΠ±ΡΠ°Π·Π½ΡΡ
ΡΠ΅ΠΌΠΏΠ΅ΡΠ°ΡΡΡΠ°Ρ
. ΠΡΠΎΠΌΠ΅ ΡΠΎΠ³ΠΎ, ΠΌΠ°ΡΠ΅ΡΠΈΠ°Π» ΡΠΎ Π²ΡΠ΅ΠΌΠ΅Π½Π΅ΠΌ Π½Π΅ ΠΏΠΎΠΊΡΡΠ²Π°Π΅ΡΡΡ ΠΌΠΈΠΊΡΠΎΡΡΠ΅ΡΠΈΠ½Π°ΠΌΠΈ, Π² Π½Π΅ΠΌ Π½Π΅ ΠΏΠΎΡΠ²ΠΈΡΡΡ Π³ΡΠΈΠ±ΠΎΠΊ, Π³ΡΡΠ·Ρ Π»Π΅Π³ΠΊΠΎ ΡΠ΄Π°Π»ΠΈΡΡ. ΠΡΠ΄Π΅Π»ΠΊΠ° Π½Π°ΡΡΠΆΠ½ΡΡ
ΠΎΡΠΊΠΎΡΠΎΠ² ΠΎΠΊΠΎΠ½ ΠΏΡΡΠ΅ΠΌ ΠΏΡΠΈΠΌΠ΅Π½Π΅Π½ΠΈΡ ΠΠΠ₯ ΠΏΠ°Π½Π΅Π»Π΅ΠΉ ΠΈΠΌΠ΅Π΅Ρ ΠΌΠΈΠ½ΡΡ β Π΄ΠΎΡΡΠ°ΡΠΎΡΠ½ΠΎ Π²ΡΡΠΎΠΊΠ°Ρ ΡΡΠΎΠΈΠΌΠΎΡΡΡ ΠΈΠ·Π΄Π΅Π»ΠΈΠΉ. ΠΠ΄Π½Π°ΠΊΠΎ Π΅ΡΠ»ΠΈ Π²Ρ Ρ
ΠΎΡΠΈΡΠ΅ ΠΏΠΎΠ»ΡΡΠΈΡΡ Π³Π°ΡΠ°Π½ΡΠΈΡΠΎΠ²Π°Π½Π½ΠΎΠ΅ ΠΊΠ°ΡΠ΅ΡΡΠ²ΠΎ, ΡΠΎ Π»ΡΡΡΠ΅ Π²ΡΠ±ΡΠ°ΡΡ ΠΈΡ
, Π½Π΅ΡΠΌΠΎΡΡΡ Π½Π° ΡΡΠΎΠΈΠΌΠΎΡΡΡ.

- Π‘Π°ΠΉΠ΄ΠΈΠ½Π³ΠΎΠ²ΡΠ΅ ΠΏΠ°Π½Π΅Π»ΠΈ ΡΠ°ΠΊΠΆΠ΅ ΡΠ°ΡΡΠΎ ΠΏΡΠΈΠΌΠ΅Π½ΡΡΡ ΠΏΡΠΈ ΠΎΡΠ΄Π΅Π»ΠΊΠ΅ Π½Π°ΡΡΠΆΠ½ΡΡ ΠΎΡΠΊΠΎΡΠΎΠ². ΠΠ½ΠΈ ΠΏΡΠΎΡΡΡ Π² ΡΡ ΠΎΠ΄Π΅ ΠΈ Π½Π΅ Π½Π°ΠΊΠ°ΠΏΠ»ΠΈΠ²Π°ΡΡ Π½Π° ΠΏΠΎΠ²Π΅ΡΡ Π½ΠΎΡΡΠΈ ΠΏΡΠ»Ρ, ΡΡΡΠΎΠΉΡΠΈΠ²Ρ ΠΊ Π°Π³ΡΠ΅ΡΡΠΈΠ²Π½ΡΠΌ Π²ΠΎΠ·Π΄Π΅ΠΉΡΡΠ²ΠΈΡΠΌ Π²Π½Π΅ΡΠ½Π΅ΠΉ ΡΡΠ΅Π΄Ρ, Π½Π΅ Π±ΠΎΡΡΡΡ ΡΠΈΠ»ΡΠ½ΡΡ ΠΌΠΎΡΠΎΠ·ΠΎΠ² ΠΈ Π½Π΅ Π²ΡΠ³ΠΎΡΠ°ΡΡ Π½Π° ΡΠΎΠ»Π½ΡΠ΅. ΠΡΠΎΠΌΠ΅ ΡΠΎΠ³ΠΎ, ΡΠ°ΠΉΠ΄ΠΈΠ½Π³ΠΎΠ²ΡΠ΅ ΠΏΠ°Π½Π΅Π»ΠΈ ΠΌΠΎΠ³ΡΡ ΠΏΡΠΎΡΠ»ΡΠΆΠΈΡΡ Π΄ΠΎΡΡΠ°ΡΠΎΡΠ½ΠΎ Π΄ΠΎΠ»Π³ΠΎ ΠΏΡΠΈ ΠΈΡ ΠΏΡΠ°Π²ΠΈΠ»ΡΠ½ΠΎΠΌ ΠΌΠΎΠ½ΡΠ°ΠΆΠ΅.
ΠΡΠ±ΡΠ°Π², ΡΠ΅ΠΌ ΠΎΡΠ΄Π΅Π»Π°ΡΡ ΠΎΡΠΊΠΎΡΡ ΠΎΠΊΠΎΠ½ ΡΠ½Π°ΡΡΠΆΠΈ, ΠΌΠΎΠΆΠ΅ΡΠ΅ ΠΏΡΠΈΡΡΡΠΏΠ°ΡΡ ΠΊ ΡΠ°ΠΌΠΈΠΌ ΡΠ°Π±ΠΎΡΠ°ΠΌ.
ΠΡΠ΄Π΅Π»ΠΊΠ° ΠΎΠΊΠΎΠ½Π½ΡΡ ΠΎΡΠΊΠΎΡΠΎΠ² ΡΠ½Π°ΡΡΠΆΠΈ Ρ ΠΏΠΎΠΌΠΎΡΡΡ ΡΡΡΠΊΠ°ΡΡΡΠΊΠΈ
ΠΠ°ΠΊ ΠΌΡ ΡΠΆΠ΅ ΡΠΊΠ°Π·Π°Π»ΠΈ, ΠΈΡΠΏΠΎΠ»ΡΠ·ΠΎΠ²Π°Π½ΠΈΠ΅ ΡΡΡΠΊΠ°ΡΡΡΠΊΠΈ ΡΠ²Π»ΡΠ΅ΡΡΡ ΡΠ°ΠΌΡΠΌ ΡΠΊΠΎΠ½ΠΎΠΌΠΈΡΠ½ΡΠΌ Π²Π°ΡΠΈΠ°Π½ΡΠΎΠΌ, Π±Π»Π°Π³ΠΎΠ΄Π°ΡΡ ΡΠ΅ΠΌΡ Π΄Π°Π½Π½ΡΠΉ ΠΌΠ΅ΡΠΎΠ΄ Π΄ΠΎΡΡΡΠΏΠ΅Π½ Π°Π±ΡΠΎΠ»ΡΡΠ½ΠΎ ΠΊΠ°ΠΆΠ΄ΠΎΠΌΡ. Π Π°Π±ΠΎΡΡ ΡΠ°ΠΊΠΆΠ΅ Π΄ΠΎΡΡΠ°ΡΠΎΡΠ½ΠΎ ΠΏΡΠΎΡΡΡ, Π³Π»Π°Π²Π½ΠΎΠ΅, ΡΠΎΡΠ½ΠΎ ΡΠ»Π΅Π΄ΠΎΠ²Π°ΡΡ Π½Π°ΡΠΈΠΌ ΠΈΠ½ΡΡΡΡΠΊΡΠΈΡΠΌ.
ΠΠ°ΠΊ Π²ΡΠΏΠΎΠ»Π½ΠΈΡΡ ΠΎΡΠ΄Π΅Π»ΠΊΡ ΠΎΠΊΠΎΠ½Π½ΡΡ ΠΎΡΠΊΠΎΡΠΎΠ² ΡΠ½Π°ΡΡΠΆΠΈ — ΠΏΠΎΡΠ°Π³ΠΎΠ²Π°Ρ ΡΡ Π΅ΠΌΠ°
Π¨Π°Π³ 1: ΠΠΎΠ΄Π³ΠΎΡΠΎΠ²ΠΊΠ° ΠΏΠΎΠ²Π΅ΡΡ Π½ΠΎΡΡΠΈ
Π‘Π½Π°ΡΠ°Π»Π° Π½ΡΠΆΠ½ΠΎ ΠΏΡΠΎΠ²Π΅ΡΡΠΈ ΠΎΡΠΈΡΡΠΊΡ ΠΎΠΊΠΎΠ½Π½ΡΡ ΠΏΡΠΎΠ΅ΠΌΠΎΠ² β ΡΠ΄Π°Π»ΠΈΡΠ΅ Π²ΡΡ Π³ΡΡΠ·Ρ, ΠΏΡΠ»Ρ ΠΈ ΠΈΠ·Π»ΠΈΡΠΊΠΈ ΠΌΠΎΠ½ΡΠ°ΠΆΠ½ΠΎΠΉ ΠΏΠ΅Π½Ρ. ΠΠΎ ΠΈΠ·Π±Π΅ΠΆΠ°Π½ΠΈΠ΅ ΠΏΠΎΠΏΠ°Π΄Π°Π½ΠΈΡ ΡΠ°ΡΡΠ²ΠΎΡΠ° Π½Π° ΡΡΠ΅ΠΊΠ»Π° ΠΈΡ Π½ΡΠΆΠ½ΠΎ ΠΎΠ±ΡΠ·Π°ΡΠ΅Π»ΡΠ½ΠΎ Π·Π°ΠΊΡΡΡΡ ΠΏΠ»Π΅Π½ΠΊΠΎΠΉ, Π° Π΅ΡΠ»ΠΈ Π΅ΡΡΡ ΡΠ΅Π»ΠΈ, ΠΈΡ Π»ΡΡΡΠ΅ Π·Π°Π³Π΅ΡΠΌΠ΅ΡΠΈΠ·ΠΈΡΠΎΠ²Π°ΡΡ.

Π¨Π°Π³ 2: Π£ΡΡΠ°Π½ΠΎΠ²ΠΊΠ° Π½Π°ΠΏΡΠ°Π²Π»ΡΡΡΠΈΡ
Π‘Π»Π΅Π΄ΡΡΡΠΈΠΉ ΡΠ°Π³ β ΡΡΡΠ°Π½ΠΎΠ²ΠΊΠ° ΠΌΠ°ΡΠΊΠΎΠ² Π»ΠΈΠ±ΠΎ ΡΠΎΠ½ΠΊΠΈΡ ΡΠ΅Π΅ΠΊ Π½Π° ΡΠ°ΡΡΡΠΎΡΠ½ΠΈΠΈ ΠΎΠΊΠΎΠ»ΠΎ 5 ΡΠΌ ΠΎΡ ΠΎΠΊΠ½Π°. ΠΡΠΈΠΊΡΠ΅ΠΏΠ»ΡΡΡ ΠΈΠ·Π΄Π΅Π»ΠΈΡ ΠΌΠΎΠΆΠ½ΠΎ Ρ ΠΏΠΎΠΌΠΎΡΡΡ Π³ΠΈΠΏΡΠΎΠ²ΠΎΠ³ΠΎ ΠΊΠ»Π΅Ρ ΠΈΠ»ΠΈ ΠΆΠΈΠ΄ΠΊΠΈΡ Π³Π²ΠΎΠ·Π΄Π΅ΠΉ. Π’ΠΎΠ»ΡΠΈΠ½Ρ ΡΡΡΠΊΠ°ΡΡΡΠ½ΠΎΠ³ΠΎ ΡΠ»ΠΎΡ ΠΎΠΏΡΠ΅Π΄Π΅Π»ΡΡΡ ΡΠ°ΠΊ, ΡΡΠΎΠ±Ρ ΡΠ»ΠΎΠΉ Π½Π° 1 ΡΠΌ Π·Π°ΠΊΡΡΠ²Π°Π» ΠΎΠΊΠ½ΠΎ (ΡΠ°ΡΠ΅ Π²ΡΠ΅Π³ΠΎ, ΡΡΠΎ ΠΎΠΊΠΎΠ»ΠΎ 2 ΡΠΌ). Π£Π³Π»Ρ ΠΆΠ΅Π»Π°ΡΠ΅Π»ΡΠ½ΠΎ Π΄Π΅Π»Π°ΡΡ Ρ ΠΌΠ°Π»Π΅Π½ΡΠΊΠΈΠΌ ΡΠΊΠΎΡΠΎΠΌ, Π΄Π»Ρ ΡΠ΅Π³ΠΎ ΠΌΠΎΠΆΠ½ΠΎ Π²ΠΎΡΠΏΠΎΠ»ΡΠ·ΠΎΠ²Π°ΡΡΡΡ ΡΠΏΠ΅ΡΠΈΠ°Π»ΡΠ½ΡΠΌΠΈ ΡΠ³ΠΎΠ»ΡΠ½ΠΈΠΊΠ°ΠΌΠΈ.
Π¨Π°Π³ 3: ΠΡΡΡΠΊΠ°ΡΡΡΠΈΠ²Π°Π½ΠΈΠ΅ ΠΎΡΠΊΠΎΡΠΎΠ²
ΠΠΎΡΠ»Π΅ ΠΏΠΎΠ΄Π³ΠΎΡΠΎΠ²ΠΊΠΈ Π½Π°ΠΏΡΠ°Π²Π»ΡΡΡΠΈΡ ΠΌΠΎΠΆΠ½ΠΎ Π½Π°Π½ΠΎΡΠΈΡΡ ΡΠ°ΡΡΠ²ΠΎΡ. ΠΠ»Ρ ΡΠ°Π±ΠΎΡΡ ΠΆΠ΅Π»Π°ΡΠ΅Π»ΡΠ½ΠΎ ΠΊΡΠΏΠΈΡΡ ΡΠΆΠ΅ Π³ΠΎΡΠΎΠ²ΡΡ ΡΠΌΠ΅ΡΡ Π² Π»ΡΠ±ΠΎΠΌ ΡΡΡΠΎΠΈΡΠ΅Π»ΡΠ½ΠΎΠΌ ΠΌΠ°Π³Π°Π·ΠΈΠ½Π΅, ΡΡΠΎ Π·Π½Π°ΡΠΈΡΠ΅Π»ΡΠ½ΠΎ ΡΠΏΡΠΎΡΡΠΈΡ ΠΏΡΠΎΠ²Π΅Π΄Π΅Π½ΠΈΠ΅ ΡΠ°Π±ΠΎΡ. ΠΠ½ΡΡΡΡΠΊΡΠΈΠΈ ΠΏΠΎ ΠΏΡΠΈΠ³ΠΎΡΠΎΠ²Π»Π΅Π½ΠΈΡ ΡΠΎΡΡΠ°Π²Π° Π²ΡΠ΅Π³Π΄Π° ΡΠ°ΡΠΏΠΎΠ»ΠΎΠΆΠ΅Π½Ρ Π½Π° ΡΠΏΠ°ΠΊΠΎΠ²ΠΊΠ΅, ΡΡΠΎ ΠΈΠ·Π±Π°Π²ΠΈΡ Π²Π°Ρ ΠΎΡ Π²ΠΎΠ·ΠΌΠΎΠΆΠ½ΡΡ ΠΎΡΠΈΠ±ΠΎΠΊ ΠΏΡΠΈΠ³ΠΎΡΠΎΠ²Π»Π΅Π½ΠΈΡ Π½Π΅ΠΏΡΠ°Π²ΠΈΠ»ΡΠ½ΠΎΠ³ΠΎ ΡΠ°ΡΡΠ²ΠΎΡΠ°. ΠΡΠΈ ΡΡΠΎΠΌ Π½Π΅ Π·Π°Π±ΡΠ²Π°ΠΉΡΠ΅, ΡΡΠΎ ΡΠ°Π±ΠΎΡΡ ΠΌΡ Π±ΡΠ΄Π΅ΠΌ ΠΏΡΠΎΠ²ΠΎΠ΄ΠΈΡΡ Π½Π° ΡΠ»ΠΈΡΠ΅, Π° ΠΏΠΎΡΠΎΠΌΡ Π»ΡΡΡΠ΅ Π²ΡΠ΅Π³ΠΎ ΡΡΡ ΠΏΠΎΠ΄ΠΎΠΉΠ΄Π΅Ρ ΡΡΡΠΊΠ°ΡΡΡΠΊΠ° Π΄Π»Ρ Π½Π°ΡΡΠΆΠ½ΡΡ ΡΠ°Π±ΠΎΡ.
ΠΠ»Ρ Π½Π°Π½Π΅ΡΠ΅Π½ΠΈΡ ΡΠΌΠ΅ΡΠΈ Π½ΡΠΆΠ½ΠΎ ΠΈΡΠΏΠΎΠ»ΡΠ·ΠΎΠ²Π°ΡΡ ΡΠΏΠ°ΡΠ΅Π»Ρ ΡΡΠ΅Π΄Π½ΠΈΡ ΡΠ°Π·ΠΌΠ΅ΡΠΎΠ² β Π½Π°ΠΌΠ½ΠΎΠ³ΠΎ ΡΠ΄ΠΎΠ±Π½Π΅Π΅, Π΅ΡΠ»ΠΈ ΠΎΠ½ Π±ΡΠ΄Π΅Ρ Π½Π΅ ΠΌΠ΅Π½ΡΡΠ΅, ΡΠ΅ΠΌ ΡΠΈΡΠΈΠ½Π° ΠΎΡΠΊΠΎΡΠΎΠ². Π‘ΠΌΠ΅ΡΡ Π½Π°Π½ΠΎΡΠΈΠΌ ΡΠ²Π΅ΡΡ Ρ Π²Π½ΠΈΠ·, Π°ΠΊΠΊΡΡΠ°ΡΠ½ΠΎΠ΅ Π½Π°ΠΊΠΈΠ΄ΡΠ²Π°Ρ Π½Π΅Π±ΠΎΠ»ΡΡΠΎΠ΅ Π΅Π΅ ΠΊΠΎΠ»ΠΈΡΠ΅ΡΡΠ²ΠΎ Π½Π° ΠΏΠΎΠ²Π΅ΡΡ Π½ΠΎΡΡΡ ΠΈ ΡΠ°Π·Π³Π»Π°ΠΆΠΈΠ²Π°Ρ, Π½Π΅ Π·Π°Π±ΡΠ²Π°Ρ ΡΠ»Π΅Π΄ΠΈΡΡ Π·Π° ΡΡΠΎΠ²Π½Π΅ΠΌ ΠΏΠΎ ΡΡΡΠ°Π½ΠΎΠ²Π»Π΅Π½Π½ΡΠΌ ΡΠ°Π½Π΅Π΅ ΠΌΠ°ΡΠΊΠ°ΠΌ. ΠΠ»Ρ ΡΠΎΠ³ΠΎ ΡΡΠΎΠ±Ρ ΡΠ°ΡΡΠ²ΠΎΡ Π»Π΅Π³ Π½Π° ΠΏΠΎΠ²Π΅ΡΡ Π½ΠΎΡΡΡ ΠΊΠ°ΡΠ΅ΡΡΠ²Π΅Π½Π½ΠΎ, ΡΡΠ°ΡΠ°ΠΉΡΠ΅ΡΡ Π΄Π΅ΡΠΆΠ°ΡΡ ΡΠΏΠ°ΡΠ΅Π»Ρ ΠΏΠ΅ΡΠΏΠ΅Π½Π΄ΠΈΠΊΡΠ»ΡΡΠ½ΠΎ ΠΏΠΎΠ²Π΅ΡΡ Π½ΠΎΡΡΠΈ ΠΎΡΠΊΠΎΡΠ°. Π’Π°ΠΊΠΈΠ΅ Π΄Π΅ΠΉΡΡΠ²ΠΈΡ Π²ΡΠΏΠΎΠ»Π½ΡΡΡ Π² Π½Π΅ΡΠΊΠΎΠ»ΡΠΊΠΎ ΠΏΠΎΠ΄Ρ ΠΎΠ΄ΠΎΠ² Ρ ΠΎΡΡΠ°Π½ΠΎΠ²ΠΊΠ°ΠΌΠΈ, Π±Π»Π°Π³ΠΎΠ΄Π°ΡΡ ΡΠ΅ΠΌΡ ΠΏΠΎΠ²Π΅ΡΡ Π½ΠΎΡΡΡ ΠΎΡΠΊΠΎΡΠΎΠ² ΠΏΠΎΠ»ΡΡΠΈΡΡΡ ΡΠΎΠ²Π½ΠΎΠΉ ΠΈ Π±Π΅Π· ΡΠ΅Π»Π΅ΠΉ. ΠΡΠ»ΠΈ Π²Π΄ΡΡΠ³ Π² ΠΏΡΠΎΡΠ΅ΡΡΠ΅ ΡΠ°Π±ΠΎΡ Ρ Π²Π°Ρ ΠΎΠ±ΡΠ°Π·ΡΠ΅ΡΡΡ Π½Π΅ΡΠΊΠΎΠ»ΡΠΊΠΎ Π±ΡΠ³ΠΎΡΠΊΠΎΠ², Π½ΠΈΡΠ΅Π³ΠΎ ΡΡΡΠ°ΡΠ½ΠΎΠ³ΠΎ, ΠΏΠΎΡΠΊΠΎΠ»ΡΠΊΡ ΠΏΠΎΡΠ»Π΅ ΠΏΠΎΠ»Π½ΠΎΠ³ΠΎ Π·Π°ΡΡΡΠ²Π°Π½ΠΈΡ ΡΡΡΠΊΠ°ΡΡΡΠΊΠΈ Π½ΡΠΆΠ½ΠΎ Π±ΡΠ΄Π΅Ρ ΠΏΡΠΎΠΉΡΠΈΡΡ ΠΏΠΎ ΠΏΠΎΠ²Π΅ΡΡ Π½ΠΎΡΡΠΈ ΡΠ΅ΡΠΊΠΎΠΉ ΠΈΠ»ΠΈ Π½Π°ΠΆΠ΄Π°ΡΠΊΠΎΠΉ, ΡΡΠΎ Π»Π΅Π³ΠΊΠΎ ΡΠ±Π΅ΡΠ΅Ρ ΠΏΠΎΠ³ΡΠ΅ΡΠ½ΠΎΡΡΠΈ ΠΈ Π½Π΅ΡΠΎΠ²Π½ΠΎΡΡΠΈ.

Π¨Π°Π³ 4: ΠΠ°Π½Π΅ΡΠ΅Π½ΠΈΠ΅ ΡΠΏΠ°ΡΠ»Π΅Π²ΠΊΠΈ
ΠΠΎ Π½Π° ΡΡΠΎΠΌ ΠΎΡΠ΄Π΅Π»ΠΊΠ° ΠΎΠΊΠΎΠ½Π½ΡΡ ΠΎΡΠΊΠΎΡΠΎΠ² ΡΠ½Π°ΡΡΠΆΠΈ Ρ ΠΏΠΎΠΌΠΎΡΡΡ ΡΡΡΠΊΠ°ΡΡΡΠΊΠΈ Π½Π΅ ΠΎΠΊΠ°Π½ΡΠΈΠ²Π°Π΅ΡΡΡ. Π§ΡΠΎΠ±Ρ ΡΠ±ΡΠ°ΡΡ Π»ΡΠ±ΡΠ΅ ΠΎΠ³ΡΠ΅Ρ ΠΈ, ΠΊΠΎΡΠΎΡΡΠ΅ ΠΌΠΎΠΆΠ½ΠΎ Π΄ΠΎΠΏΡΡΡΠΈΡΡ ΠΏΡΠΈ ΠΏΡΠΎΠ²Π΅Π΄Π΅Π½ΠΈΠΈ ΠΎΡΡΡΠΊΠ°ΡΡΡΠΈΠ²Π°Π½ΠΈΡ, ΠΈΡΠΏΠΎΠ»ΡΠ·ΡΠΉΡΠ΅ ΡΠΏΠ°ΡΠ»ΡΠ²ΠΊΡ. ΠΠ»Π°Π²Π½ΠΎΠ΅, ΠΏΡΠΈΠΌΠ΅Π½ΡΡΡ Π΅Π΅ ΡΠ»Π΅Π΄ΡΠ΅Ρ ΠΏΠΎΡΠ»Π΅ ΡΠΎΠ³ΠΎ, ΠΊΠ°ΠΊ ΡΠΌΠ΅ΡΡ ΠΏΠΎΠ»Π½ΠΎΡΡΡΡ Π²ΡΡΠΎΡ Π½Π΅Ρ. Π ΡΡΠ΅Π΄Π½Π΅ΠΌ, ΠΎΠ΄ΠΈΠ½ ΡΠ°Π½ΡΠΈΠΌΠ΅ΡΡ ΡΡΡΠΊΠ°ΡΡΡΠΊΠΈ ΡΠΎΡ Π½Π΅Ρ ΠΎΠΊΠΎΠ»ΠΎ 5 ΡΡΡΠΎΠΊ, Π½ΠΎ Π΄Π»Ρ Π½Π°Π΄Π΅ΠΆΠ½ΠΎΡΡΠΈ ΠΌΠΎΠΆΠ½ΠΎ ΠΏΠΎΠ΄ΠΎΠΆΠ΄Π°ΡΡ Π΅ΡΠ΅ ΠΏΠ°ΡΡ Π΄Π½Π΅ΠΉ. Π‘Π»ΠΈΡΠΊΠΎΠΌ ΡΠΎΠ»ΡΡΡΠΌ ΡΠ»ΠΎΠΉ ΡΠΏΠ°ΡΠ»Π΅Π²ΠΊΠΈ Π΄Π΅Π»Π°ΡΡ Π½Π΅ ΡΡΠΎΠΈΡ β Π΄Π»Ρ ΡΠ³Π»Π°ΠΆΠΈΠ²Π°Π½ΠΈΡ Π½Π΅ΡΠΎΠ²Π½ΠΎΡΡΠ΅ΠΉ Ρ Π²Π°ΡΠΈΡ 0,5 ΡΠΌ. ΠΠΊΠΊΡΡΠ°ΡΠ½ΠΎ Π½Π°Π½ΠΎΡΠΈΠΌ ΡΠΏΠ°ΡΠ»Π΅Π²ΠΊΠΈ ΡΠΏΠ°ΡΠ΅Π»Π΅ΠΌ ΠΈ ΡΠ°Π·ΡΠ°Π²Π½ΠΈΠ²Π°Π΅ΠΌ.
remoskop.ru
Π²Π°ΡΠΈΠ°Π½ΡΡ ΠΎΡΠ΄Π΅Π»ΠΊΠΈ ΠΈ ΡΡ Π΅ΠΌΠ° ΠΌΠΎΠ½ΡΠ°ΠΆΠ°
ΠΡΠΎΡΠΌΠ»Π΅Π½ΠΈΠ΅ ΠΎΠΊΠΎΠ½ ΠΠΠ₯ ΠΏΠΎΡΠ»Π΅ ΠΈΡ ΡΡΡΠ°Π½ΠΎΠ²ΠΊΠΈ Π²ΠΊΠ»ΡΡΠ°Π΅Ρ Π² ΡΠ΅Π±Ρ ΠΎΡΠ΄Π΅Π»ΠΊΡ ΠΎΡΠΊΠΎΡΠΎΠ². ΠΠΎΡΠ»Π΅ Π·Π°Π²Π΅ΡΡΠ΅Π½ΠΈΡ ΡΡΠΈΡ ΡΠ°Π±ΠΎΡ ΡΠ³Π»Ρ ΠΎΡΠΎΡΠΌΠ»ΡΡΡ Π΄Π΅ΠΊΠΎΡΠ°ΡΠΈΠ²Π½ΡΠΌΠΈ ΡΠ³ΠΎΠ»ΠΊΠ°ΠΌΠΈ ΠΈΠ»ΠΈ ΡΡΡΠ°Π½Π°Π²Π»ΠΈΠ²Π°ΡΡ Π²Π½ΡΡΡΠ΅Π½Π½ΠΈΠ΅ ΠΎΡΠΊΠΎΡΡ Π½Π° ΠΎΠΊΠ½Π°.
ΠΠ»Ρ ΡΠ΅Π³ΠΎ Π½ΡΠΆΠ½Π° ΠΎΡΠ΄Π΅Π»ΠΊΠ° ΠΎΠΊΠΎΠ½
ΠΠ½ΡΡΡΠ΅Π½Π½ΡΡ ΠΎΡΠ΄Π΅Π»ΠΊΠ° ΠΏΠ»Π°ΡΡΠΈΠΊΠΎΠ²ΡΡ ΠΎΠΊΠΎΠ½ Π½Π΅ΡΠ΅Ρ Π½Π΅ ΡΠΎΠ»ΡΠΊΠΎ Π΄Π΅ΠΊΠΎΡΠ°ΡΠΈΠ²Π½ΡΡ ΡΡΠ½ΠΊΡΠΈΡ, Π½ΠΎ ΠΈ Π·Π°ΡΠΈΡΠ½ΡΡ. ΠΠΎΠ½ΡΠ°ΠΆΠ½ΡΠΉ ΡΠΎΠ² Π΄ΠΎΠ»ΠΆΠ΅Π½ Π±ΡΡΡ Π½Π°Π΄Π΅ΠΆΠ½ΠΎ Π·Π°ΡΠΈΡΠ΅Π½ ΠΎΡ ΠΎΠΊΠ°Π·ΡΠ²Π°Π΅ΠΌΡΡ Π½Π° Π½Π΅Π³ΠΎ Π²ΠΎΠ·Π΄Π΅ΠΉΡΡΠ²ΠΈΠΉ, ΡΡΠΎΠ±Ρ ΠΎΠΊΠΎΠ½Π½Π°Ρ ΡΠΈΡΡΠ΅ΠΌΠ° Π² ΡΠ΅Π»ΠΎΠΌ ΡΡΠ½ΠΊΡΠΈΠΎΠ½ΠΈΡΠΎΠ²Π°Π»Π° ΠΏΡΠ°Π²ΠΈΠ»ΡΠ½ΠΎ: Π½Π΅ Π·Π°ΠΏΠΎΡΠ΅Π²Π°Π»ΠΈ ΠΈ Π½Π΅ ΠΏΡΠΎΠΌΠ΅ΡΠ·Π°Π»ΠΈ ΡΡΠ΅ΠΊΠ»Π°, Π° Π½Π° ΠΎΡΠΊΠΎΡΠ°Ρ Π½Π΅ ΡΠΊΠ°ΠΏΠ»ΠΈΠ²Π°Π»ΡΡ ΠΊΠΎΠ½Π΄Π΅Π½ΡΠ°Ρ.
ΠΠΎΠ½ΡΠ°ΠΆΠ½ΡΠΉ ΡΠΎΠ² ΡΠ½Π°ΡΡΠΆΠΈ ΡΠ°ΠΊΠΆΠ΅ Π΄ΠΎΠ»ΠΆΠ΅Π½ Π±ΡΡΡ Π½Π°Π΄Π΅ΠΆΠ½ΠΎ Π·Π°ΡΠΈΡΠ΅Π½ ΠΎΡ Π²ΠΎΠ·Π΄Π΅ΠΉΡΡΠ²ΠΈΡ Π°ΡΠΌΠΎΡΡΠ΅ΡΠ½ΡΡ ΠΎΡΠ°Π΄ΠΊΠΎΠ², Π²Π΅ΡΡΠ° ΠΈ ΡΠΎΠ»Π½Π΅ΡΠ½ΡΡ Π»ΡΡΠ΅ΠΉ, ΠΏΠΎΠ΄ Π΄Π΅ΠΉΡΡΠ²ΠΈΠ΅ΠΌ ΠΊΠΎΡΠΎΡΡΡ ΠΏΠ΅Π½ΠΎΠΏΠΎΠ»ΠΈΡΡΠΈΡΠΎΠ» ΡΠ°Π·ΡΡΡΠ°Π΅ΡΡΡ. ΠΡΡΠ΅ΠΊΡΠΈΠ²Π½ΠΎ Π·Π°ΡΠΈΡΠΈΡΡ Π΅Π³ΠΎ ΠΌΠΎΠΆΠ½ΠΎ, ΡΡΡΠ°Π½ΠΎΠ²ΠΈΠ² ΠΌΠ΅ΡΠ°Π»Π»ΠΈΡΠ΅ΡΠΊΠΈΠ΅ ΠΎΡΠΊΠΎΡΡ ΠΈ Π½Π°Π»ΠΈΡΠ½ΠΈΠΊΠΈ Π½Π° ΠΎΠΊΠ½Π° ΠΏΠ»Π°ΡΡΠΈΠΊΠΎΠ²ΡΠ΅ Π΄Π»Ρ Π²Π½Π΅ΡΠ½Π΅ΠΉ ΠΎΡΠ΄Π΅Π»ΠΊΠΈ, ΠΊΠΎΡΠΎΡΡΠ΅ ΠΏΡΠΈΠ΄Π°Π΄ΡΡ ΠΎΠΊΠ½Ρ ΠΎΠΏΡΡΡΠ½ΡΠΉ Π·Π°Π²Π΅ΡΡΠ΅Π½Π½ΡΠΉ Π²ΠΈΠ΄.
ΠΠ»Ρ Π²Π½ΡΡΡΠ΅Π½Π½Π΅ΠΉ ΠΎΡΠ΄Π΅Π»ΠΊΠΈ ΠΎΠΊΠΎΠ½Π½ΠΎΠ³ΠΎ ΠΏΡΠΎΠ΅ΠΌΠ° Π² Π΄ΠΎΠΌΠ΅ ΠΏΡΠΈΠΌΠ΅Π½ΡΡΡ ΠΌΠ°ΡΠ΅ΡΠΈΠ°Π» ΡΠ°Π·Π½ΡΡ Π²ΠΈΠ΄ΠΎΠ². ΠΡΠΎ ΠΌΠΎΠΆΠ΅Ρ Π±ΡΡΡ Π΄Π΅ΠΊΠΎΡΠ°ΡΠΈΠ²Π½Π°Ρ ΡΡΡΠΊΠ°ΡΡΡΠΊΠ°, ΡΡΡΠ°Π½ΠΎΠ²ΠΊΠ° Π½Π° ΠΎΡΠΊΠΎΡΡ ΠΏΠ»Π°ΡΡΠΈΠΊΠΎΠ²ΡΡ ΠΎΠΊΠΎΠ½ ΠΏΠ°Π½Π΅Π»Π΅ΠΉ ΠΠΠ₯ ΡΠ²ΠΎΠΈΠΌΠΈ ΡΡΠΊΠ°ΠΌΠΈ ΠΈΠ»ΠΈ Π³ΠΈΠΏΡΠΎΠΊΠ°ΡΡΠΎΠ½Π°. ΠΡΡΠ΅ΠΊΡΠ½ΠΎ ΡΠΌΠΎΡΡΠΈΡΡΡ ΠΎΡΠ΄Π΅Π»ΠΊΠ° Π²Π½ΡΡΡΠ΅Π½Π½ΠΈΡ ΠΎΡΠΊΠΎΡΠΎΠ² Π΄Π΅ΠΊΠΎΡΠ°ΡΠΈΠ²Π½ΡΠΌ ΠΈΡΠΊΡΡΡΡΠ²Π΅Π½Π½ΡΠΌ ΠΊΠ°ΠΌΠ½Π΅ΠΌ. Π§ΡΠΎΠ±Ρ ΠΏΠΎΠ½ΡΡΡ, ΠΊΠ°ΠΊΠΎΠΉ ΠΈΠ· ΡΡΠΈΡ ΡΠΏΠΎΡΠΎΠ±ΠΎΠ² Π»ΡΡΡΠ΅, ΡΡΠΎΠΈΡ ΠΊΠ°ΠΆΠ΄ΡΠΉ ΠΈΠ· Π½ΠΈΡ ΡΠ°ΡΡΠΌΠΎΡΡΠ΅ΡΡ ΠΎΡΠ΄Π΅Π»ΡΠ½ΠΎ.
ΠΠ΅ΠΊΠΎΡΠ°ΡΠΈΠ²Π½Π°Ρ ΡΡΡΠΊΠ°ΡΡΡΠΊΠ°
ΠΡΠΏΠΎΠ»Π½ΡΡ ΡΠ΅ΠΌΠΎΠ½Ρ Π² Π΄ΠΎΠΌΠ΅, Π² ΠΊΠ°ΡΠ΅ΡΡΠ²Π΅ ΠΎΡΠ΄Π΅Π»ΠΎΡΠ½ΠΎΠ³ΠΎ ΠΌΠ°ΡΠ΅ΡΠΈΠ°Π»Π° Π΄Π»Ρ ΡΡΠ΅Π½ ΡΠ°ΡΡΠΎ ΠΈΡΠΏΠΎΠ»ΡΠ·ΡΡΡ ΠΈΠ½ΡΠ΅ΡΡΠ΅ΡΠ½ΡΡ Π΄Π΅ΠΊΠΎΡΠ°ΡΠΈΠ²Π½ΡΡ ΡΡΡΠΊΠ°ΡΡΡΠΊΡ. ΠΡΠΎΡ ΠΌΠ°ΡΠ΅ΡΠΈΠ°Π» ΠΏΠΎΠ·Π²ΠΎΠ»ΠΈΡ ΡΠ΄Π΅Π»Π°ΡΡ ΠΎΡΠΊΠΎΡΡ Π½Π° ΠΎΠΊΠ½Π°Ρ Π½Π΅ΠΎΠ±ΡΡΠ½ΡΠΌΠΈ ΠΈ ΡΡΡΠ΅ΠΊΡΠ½ΡΠΌΠΈ.
ΠΠ΅ΠΊΠΎΡΠ°ΡΠΈΠ²Π½Π°Ρ ΡΡΡΠΊΠ°ΡΡΡΠΊΠ° ΡΠ°ΡΡΠΎ ΠΈΡΠΏΠΎΠ»ΡΠ·ΡΠ΅ΡΡΡ Π΄Π»Ρ Π²Π½ΡΡΡΠ΅Π½Π½Π΅ΠΉ ΠΎΡΠ΄Π΅Π»ΠΊΠΈ ΠΎΡΠΊΠΎΡΠΎΠ²Π ΡΠΎΡΡΠ°Π² Π΄Π΅ΠΊΠΎΡΠ°ΡΠΈΠ²Π½ΠΎΠΉ ΡΡΡΠΊΠ°ΡΡΡΠΊΠΈ ΠΌΠΎΠ³ΡΡ Π²Ρ ΠΎΠ΄ΠΈΡΡ Π½Π°ΠΏΠΎΠ»Π½ΠΈΡΠ΅Π»ΠΈ ΡΠ°Π·Π»ΠΈΡΠ½ΠΎΠΉ ΡΡΠ°ΠΊΡΠΈΠΈ ΠΈ ΠΏΡΠΎΠΈΡΡ ΠΎΠΆΠ΄Π΅Π½ΠΈΡ β ΡΡΠΎ ΠΌΠΎΠ³ΡΡ Π±ΡΡΡ Π½Π°ΡΡΡΠ°Π»ΡΠ½ΡΠ΅ Π²ΠΎΠ»ΠΎΠΊΠ½Π° Π΄ΡΠ΅Π²Π΅ΡΠΈΠ½Ρ ΠΈΠ»ΠΈ ΠΊΠ°ΠΌΠ΅Π½Π½Π°Ρ ΠΊΡΠΎΡΠΊΠ° Π»ΠΈΠ±ΠΎ ΠΈΡΠΊΡΡΡΡΠ²Π΅Π½Π½ΡΠ΅ Π³ΡΠ°Π½ΡΠ»Ρ ΡΠ°Π·Π»ΠΈΡΠ½ΠΎΠ³ΠΎ ΡΠ°Π·ΠΌΠ΅ΡΠ°. ΠΠ΅ΠΊΠΎΡΠ°ΡΠΈΠ²Π½Π°Ρ ΡΡΡΠΊΠ°ΡΡΡΠΊΠ° ΠΏΡΠΈΠΌΠ΅Π½ΡΠ΅ΡΡΡ Π² ΠΊΠ°ΡΠ΅ΡΡΠ²Π΅ ΡΠΈΠ½ΠΈΡΠ½ΠΎΠ³ΠΎ ΡΠ»ΠΎΡ, ΡΠΎΠ·Π΄Π°Π²Π°Ρ Π½Π΅ΠΎΠ±ΡΡΠ½ΡΡ ΡΠ°ΠΊΡΡΡΠ½ΡΡ ΠΏΠΎΠ²Π΅ΡΡ Π½ΠΎΡΡΡ ΠΈΠ»ΠΈ Π·Π°ΠΌΡΡΠ»ΠΎΠ²Π°ΡΡΠΉ ΡΠΈΡΡΠ½ΠΎΠΊ, ΠΊΠ°ΠΊ Π²Π΅Π½Π΅ΡΠΈΠ°Π½ΡΠΊΠ°Ρ ΡΡΡΠΊΠ°ΡΡΡΠΊΠ°.
ΠΠ°ΠΊ ΠΌΠ°ΡΠ΅ΡΠΈΠ°Π» Π΄Π»Ρ Π²Π½ΡΡΡΠ΅Π½Π½Π΅ΠΉ ΠΎΡΠ΄Π΅Π»ΠΊΠΈ ΠΎΡΠΊΠΎΡΠΎΠ², Π΄Π΅ΠΊΠΎΡΠ°ΡΠΈΠ²Π½Π°Ρ ΡΡΡΠΊΠ°ΡΡΡΠΊΠ° ΠΈΠΌΠ΅Π΅Ρ Π² ΡΠ²ΠΎΠ΅ΠΌ Π°ΠΊΡΠΈΠ²Π΅ ΡΠ»Π΅Π΄ΡΡΡΠΈΠ΅ Ρ Π°ΡΠ°ΠΊΡΠ΅ΡΠΈΡΡΠΈΠΊΠΈ:
- ΡΡΡΠ΅ΠΊΡΠΈΠ²Π½ΠΎ ΠΌΠ°ΡΠΊΠΈΡΡΠ΅Ρ Π½Π΅ΡΠΎΠ²Π½ΠΎΡΡΠΈ ΠΎΡΠ½ΠΎΠ²Π°Π½ΠΈΡ;
- Π΅Π΅ ΠΌΠΎΠΆΠ½ΠΎ Π½Π°Π½ΠΎΡΠΈΡΡ Π½Π° Π»ΡΠ±ΠΎΠΉ ΠΌΠ°ΡΠ΅ΡΠΈΠ°Π» ΠΎΡΠ½ΠΎΠ²Π°Π½ΠΈΡ: ΠΊΠΈΡΠΏΠΈΡ, Π±Π΅ΡΠΎΠ½, Π³ΠΈΠΏΡΠΎΠΊΠ°ΡΡΠΎΠ½, Π΄ΡΠ΅Π²Π΅ΡΠΈΠ½Π°;
- ΡΡΠΎΡ ΠΌΠ°ΡΠ΅ΡΠΈΠ°Π» Π½Π΅ Π²ΠΏΠΈΡΡΠ²Π°Π΅Ρ Π·Π°ΠΏΠ°Ρ ΠΈ;
- Π±Π΅Π·ΠΎΠΏΠ°ΡΠ½ΡΠΉ, Π½Π΅Π³ΠΎΡΡΡΠΈΠΉ ΠΈ ΡΠΊΠΎΠ»ΠΎΠ³ΠΈΡΠ΅ΡΠΊΠΈ ΡΠΈΡΡΡΠΉ ΠΊΠΎΠΌΠΏΠΎΠ·ΠΈΡ;
- ΠΎΠ±Π»Π°Π΄Π°Π΅Ρ Π·Π²ΡΠΊΠΎΠΈΠ·ΠΎΠ»ΡΡΠΈΠΎΠ½Π½ΡΠΌΠΈ ΠΊΠ°ΡΠ΅ΡΡΠ²Π°ΠΌΠΈ;
- ΠΏΡΠΈ Π½Π΅Π·Π½Π°ΡΠΈΡΠ΅Π»ΡΠ½ΡΡ Π΄Π΅ΡΠ΅ΠΊΡΠ°Ρ ΠΎΡΠ½ΠΎΠ²Π°Π½ΠΈΡ Π΅Π³ΠΎ ΠΏΡΠ΅Π΄Π²Π°ΡΠΈΡΠ΅Π»ΡΠ½ΡΠΉ ΡΠ΅ΠΌΠΎΠ½Ρ Π½Π΅ ΡΡΠ΅Π±ΡΠ΅ΡΡΡ;
- ΠΏΡΠΈ ΠΎΠ±ΡΠ°Π±ΠΎΡΠΊΠ΅ Π²ΠΎΡΠΊΠΎΠΌ ΠΈΠ»ΠΈ ΠΎΠΊΡΠ°ΡΠΊΠ΅ ΡΡΡΠΊΠ°ΡΡΡΠ½ΡΠΉ ΡΠ»ΠΎΠΉ ΡΡΠ°Π½ΠΎΠ²ΠΈΡΡΡ Π²Π»Π°Π³ΠΎΠΎΡΡΠ°Π»ΠΊΠΈΠ²Π°ΡΡΠΈΠΌ;
- ΠΎΠ±Π»Π°Π΄Π°Π΅Ρ Π²ΠΎΠ·Π΄ΡΡ ΠΎΠΏΡΠΎΠ½ΠΈΡΠ°Π΅ΠΌΠΎΡΡΡΡ;
- ΡΠ΅ΠΌΠΎΠ½Ρ ΡΡΡΠΊΠ°ΡΡΡΠ½ΠΎΠ³ΠΎ ΡΠ»ΠΎΡ ΠΎΡΡΡΠ΅ΡΡΠ²Π»ΡΠ΅ΡΡΡ ΠΎΡΠ΅Π½Ρ ΠΏΡΠΎΡΡΠΎ, Π½Π΅Ρ Π½Π΅ΠΎΠ±Ρ
ΠΎΠ΄ΠΈΠΌΠΎΡΡΠΈ ΡΠ΄Π°Π»ΡΡΡ Π²ΡΡ ΠΎΡΠ΄Π΅Π»ΠΊΡ;
Π²ΠΎΠ·ΠΌΠΎΠΆΠ½Π° ΠΎΡΠ΄Π΅Π»ΠΊΠ° Π°ΡΠΎΡΠ½ΡΡ ΠΎΠΊΠΎΠ½Π½ΡΡ ΠΊΠΎΠ½ΡΡΡΡΠΊΡΠΈΠΉ.
ΠΠΈΠ΄Ρ Π΄Π΅ΠΊΠΎΡΠ°ΡΠΈΠ²Π½ΡΡ ΡΡΡΠΊΠ°ΡΡΡΠΎΠΊ
Π Π·Π°Π²ΠΈΡΠΈΠΌΠΎΡΡΠΈ ΠΎΡ Π²ΠΈΠ΄Π° Π½Π°ΠΏΠΎΠ»Π½ΠΈΡΠ΅Π»Ρ ΠΈ ΠΎΡΠ½ΠΎΠ²Π½ΠΎΠ³ΠΎ Π²Π΅ΡΠ΅ΡΡΠ²Π° Π΄Π΅ΠΊΠΎΡΠ°ΡΠΈΠ²Π½ΡΠ΅ ΡΡΡΠΊΠ°ΡΡΡΠΊΠΈ Π±ΡΠ²Π°ΡΡ:
- ΡΠ΅ΠΊΡΡΡΡΠ½Π°Ρ ΡΡΡΠΊΠ°ΡΡΡΠΊΠ° ΠΎΠ±Π»Π°Π΄Π°Π΅Ρ ΡΡΠΊΠΎ Π²ΡΡΠ°ΠΆΠ΅Π½Π½ΡΠΌ ΡΠΈΡΡΠ½ΠΊΠΎΠΌ, ΠΊΠΎΡΠΎΡΡΠΉ Π·Π°ΡΠ°Π½Π΅Π΅ ΠΈΠ·Π²Π΅ΡΡΠ΅Π½;
Π’Π΅ΠΊΡΡΡΡΠ½Π°Ρ ΡΡΡΠΊΠ°ΡΡΡΠΊΠ° ΡΠΎΠ·Π΄Π°Π΅Ρ Π·Π°ΡΠ°Π½Π΅Π΅ ΠΈΠ·Π²Π΅ΡΡΠ½ΡΠΉ ΡΠΈΡΡΠ½ΠΎΠΊ - ΡΡΡΡΠΊΡΡΡΠ½Π°Ρ ΡΡΡΠΊΠ°ΡΡΡΠΊΠ° ΠΎΠ±Π»Π°Π΄Π°Π΅Ρ ΠΌΠ΅Π½Π΅Π΅ Π²ΡΡΠ°ΠΆΠ΅Π½Π½ΡΠΌ ΡΠ΅Π»ΡΠ΅ΡΠΎΠΌ, ΡΠ΅ΠΌ ΡΠ΅ΠΊΡΡΡΡΠ½Π°Ρ, Π½ΠΎ Π΅Π΅ ΡΠΈΡΡΠ½ΠΎΠΊ Π·Π°ΡΠ°Π½Π΅Π΅ Π½Π΅ΠΏΡΠ΅Π΄ΡΠΊΠ°Π·ΡΠ΅ΠΌ;
Π‘ΡΡΡΠΊΡΡΡΠ½Π°Ρ ΡΡΡΠΊΠ°ΡΡΡΠΊΠ° ΡΠΎΠ·Π΄Π°Π΅Ρ Π½Π΅ΠΈΠ·Π²Π΅ΡΡΠ½ΡΠΉ ΡΠΈΡΡΠ½ΠΎΠΊ - Π²Π΅Π½Π΅ΡΠΈΠ°Π½ΡΠΊΠ°Ρ ΡΡΡΠΊΠ°ΡΡΡΠΊΠ° ΠΈΠΌΠ΅Π΅Ρ ΠΌΠ½ΠΎΠΆΠ΅ΡΡΠ²ΠΎ ΡΠ»ΠΎΠ΅Π², Π² ΡΠ΅Π·ΡΠ»ΡΡΠ°ΡΠ΅ ΡΠ΅Π³ΠΎ ΠΏΠΎΠ»ΡΡΠ°Π΅ΡΡΡ Π·Π°ΠΌΡΡΠ»ΠΎΠ²Π°ΡΡΠΉ ΡΠΈΡΡΠ½ΠΎΠΊ ΠΈ Π³Π»Π°Π΄ΠΊΠ°Ρ ΠΏΠΎΠ²Π΅ΡΡ
Π½ΠΎΡΡΡ.
ΠΠ΅Π½Π΅ΡΠΈΠ°Π½ΡΠΊΠ°Ρ ΡΡΡΠΊΠ°ΡΡΡΠΊΠ° ΡΠΎΠ·Π΄Π°Π΅Ρ Π³Π»Π°Π΄ΠΊΡΡ ΠΌΠ½ΠΎΠ³ΠΎΡΠ»ΠΎΠΉΠ½ΡΡ ΠΏΠΎΠ²Π΅ΡΡ
Π½ΠΎΡΡΡ
ΠΠΎΠ΄Π³ΠΎΡΠΎΠ²ΠΊΠ° ΠΏΠΎΠ²Π΅ΡΡ Π½ΠΎΡΡΠΈ
ΠΡ ΠΊΠ°ΡΠ΅ΡΡΠ²Π΅Π½Π½ΠΎ ΠΏΠΎΠ΄Π³ΠΎΡΠΎΠ²Π»Π΅Π½Π½ΠΎΠΉ ΠΏΠΎΠ²Π΅ΡΡ Π½ΠΎΡΡΠΈ Π·Π°Π²ΠΈΡΠΈΡ Π΄ΠΎΠ»Π³ΠΎΠ²Π΅ΡΠ½ΠΎΡΡΡ ΡΡΡΠΊΠ°ΡΡΡΠ½ΠΎΠ³ΠΎ ΡΠ»ΠΎΡ. ΠΠΎΡΡΠΎΠΌΡ ΠΎΡΠ΄Π΅Π»ΠΊΠ° ΠΎΠΊΠΎΠ½Π½ΡΡ ΠΎΡΠΊΠΎΡΠΎΠ² Π²Π½ΡΡΡΠΈ ΠΏΡΠΈ ΠΏΠΎΠΌΠΎΡΠΈ Π΄Π΅ΠΊΠΎΡΠ°ΡΠΈΠ²Π½ΠΎΠΉ ΡΡΡΠΊΠ°ΡΡΡΠΊΠΈ Π΄ΠΎΠ»ΠΆΠ½Π° Π½Π°ΡΠΈΠ½Π°ΡΡΡΡ Ρ ΠΏΠΎΠ΄Π³ΠΎΡΠΎΠ²ΠΊΠΈ ΠΎΡΠ½ΠΎΠ²Π°Π½ΠΈΡ.
- ΠΏΠΎΠ²Π΅ΡΡ
Π½ΠΎΡΡΡ ΠΎΡΠΊΠΎΡΠΎΠ² ΠΎΡΠΈΡΠ°ΡΡ ΠΎΡ ΡΡΡΠΎΠΈΡΠ΅Π»ΡΠ½ΠΎΠ³ΠΎ ΠΌΡΡΠΎΡΠ° ΠΈ ΠΎΠ±Π΅ΡΠΏΡΠ»ΠΈΠ²Π°ΡΡ. ΠΡΠΈ Π½Π°Π»ΠΈΡΠΈΠΈ ΡΡΠ΅ΡΠΈΠ½ ΠΈΡ
ΡΠ°ΡΡΠΈΠ²Π°ΡΡ ΠΈ ΡΠΏΠ°ΠΊΠ»ΡΡΡ;
ΠΠ° ΠΏΠ΅ΡΠ²ΠΎΠΌ ΡΡΠ°ΠΏΠ΅ Π·Π°Π΄Π΅Π»ΡΠ²Π°ΡΡ ΡΡΠ΅ΡΠΈΠ½Ρ ΠΈ ΠΎΠ±Π΅ΡΠΏΡΠ»ΠΈΠ²Π°ΡΡ ΠΏΠΎΠ²Π΅ΡΡ
Π½ΠΎΡΡΡ - ΠΏΠΎΠ²Π΅ΡΡ
Π½ΠΎΡΡΡ ΠΎΡΠΊΠΎΡΠ° Π³ΡΡΠ½ΡΡΡΡ, Π½Π°Π½ΠΎΡΡΡ ΡΡΠ°ΡΡΠΎΠ²ΡΠΉ ΡΠ»ΠΎΠΉ ΡΡΡΠΊΠ°ΡΡΡΠΊΠΈ ΠΈ Π²ΡΡΠ°Π²Π½ΠΈΠ²Π°ΡΡ ΠΏΠΎΠ²Π΅ΡΡ
Π½ΠΎΡΡΡ. ΠΠ° ΡΡΠΎΠΌ ΡΡΠ°ΠΏΠ΅ Π½Π° ΡΠ³Π»Π°Ρ
ΠΎΡΠΊΠΎΡΠΎΠ² Π·Π°ΠΊΡΠ΅ΠΏΠ»ΡΡΡ ΠΌΠ΅ΡΠ°Π»Π»ΠΈΡΠ΅ΡΠΊΠΈΠ΅ ΠΏΠ΅ΡΡΠΎΡΠΈΡΠΎΠ²Π°Π½Π½ΡΠ΅ ΡΠ³ΠΎΠ»ΠΊΠΈ;
ΠΠΎΠ΄Π³ΠΎΡΠΎΠ²Π»Π΅Π½Π½ΡΡ ΠΏΠΎΠ²Π΅ΡΡ
Π½ΠΎΡΡΡ Π³ΡΡΠ½ΡΡΡΡ ΠΈ Π²ΡΡΠ°Π²Π½ΠΈΠ²Π°ΡΡ - ΡΡΡΠΊΠ°ΡΡΡΠ½ΡΠΉ ΡΠ»ΠΎΠΉ Π·Π°ΡΠΈΡΠ°ΡΡ ΠΈ Π΄Π°ΡΡ Π΅ΠΌΡ ΠΏΡΠΎΡΠΎΡ
Π½ΡΡΡ. ΠΠ°ΡΠ΅ΠΌ Π³ΡΡΠ½ΡΡΡΡ ΠΏΠΎΠ²ΡΠΎΡΠ½ΠΎ;
ΠΠΎΡΠ»Π΅ Π²ΡΡΠ°Π²Π½ΠΈΠ²Π°Π½ΠΈΡ ΠΎΡΠΊΠΎΡΠ° ΠΏΠΎΠ²Π΅ΡΡ
Π½ΠΎΡΡΡ Π·Π°ΡΠΈΡΠ°ΡΡ ΠΈ ΠΏΠΎΠ²ΡΠΎΡΠ½ΠΎ Π³ΡΡΠ½ΡΡΡΡ - Π½Π°Π½ΠΎΡΡΡ Π΄Π΅ΠΊΠΎΡΠ°ΡΠΈΠ²Π½ΡΠΉ ΡΠ»ΠΎΠΉ.
ΠΠ° Π·Π°ΠΊΠ»ΡΡΠΈΡΠ΅Π»ΡΠ½ΠΎΠΌ ΡΡΠ°ΠΏΠ΅ Π²ΡΠΏΠΎΠ»Π½ΡΡΡ Π΄Π΅ΠΊΠΎΡΠ°ΡΠΈΠ²Π½ΡΡ ΠΎΡΠ΄Π΅Π»ΠΊΡ ΠΎΡΠΊΠΎΡΠ°
ΠΡΠΊΠΎΡΡ ΠΈΠ· Π³ΠΈΠΏΡΠΎΠΊΠ°ΡΡΠΎΠ½Π°
ΠΡΠ΄Π΅Π»ΠΊΠ° ΠΎΡΠΊΠΎΡΠΎΠ² Π³ΠΈΠΏΡΠΎΠΊΠ°ΡΡΠΎΠ½ΠΎΠΌ Π²ΡΠΏΠΎΠ»Π½ΡΠ΅ΡΡΡ Π±ΡΡΡΡΠΎ ΠΈ Π½Π΅ ΡΡΠ΅Π±ΡΠ΅Ρ ΠΎΡΠΎΠ±ΡΡ ΡΡΡΠΎΠΈΡΠ΅Π»ΡΠ½ΡΡ Π½Π°Π²ΡΠΊΠΎΠ². ΠΠΎΠ½ΡΠ°ΠΆ Π²ΠΎΠ·ΠΌΠΎΠΆΠ΅Π½ ΠΏΡΠΈ ΠΏΠΎΠΌΠΎΡΠΈ ΠΌΠΎΠ½ΡΠ°ΠΆΠ½ΠΎΠΉ ΠΏΠ΅Π½Ρ ΠΈΠ»ΠΈ ΡΠΏΠ°ΠΊΠ»Π΅Π²ΠΊΠΈ Π² ΠΊΠ°ΡΠ΅ΡΡΠ²Π΅ ΠΊΠ»Π΅ΡΡΠ΅Π³ΠΎ ΡΠΎΡΡΠ°Π²Π° ΠΈΠ»ΠΈ Π½Π° ΠΌΠ΅ΡΠ°Π»Π»ΠΈΡΠ΅ΡΠΊΠΈΠΉ ΠΊΠ°ΡΠΊΠ°Ρ. ΠΠΈΠΏΡΠΎΠΊΠ°ΡΡΠΎΠ½ Π΄Π»Ρ ΠΎΠΊΠΎΠ½ Π΄ΠΎΠ»ΠΆΠ΅Π½ ΠΈΠΌΠ΅ΡΡ ΠΌΠ°ΡΠΊΠΈΡΠΎΠ²ΠΊΡ ΠΠΠΠ.
ΠΠΈΠΏΡΠΎΠΊΠ°ΡΡΠΎΠ½ Π½Π° ΠΎΡΠΊΠΎΡΡ ΠΌΠΎΠΆΠ½ΠΎ ΠΌΠΎΠ½ΡΠΈΡΠΎΠ²Π°ΡΡ Π½Π° ΠΌΠ΅ΡΠ°Π»Π»ΠΈΡΠ΅ΡΠΊΠΈΠΉ ΠΊΠ°ΡΠΊΠ°ΡΠΠ»Ρ Π½Π΅Π³ΠΎ Ρ Π°ΡΠ°ΠΊΡΠ΅ΡΠ½Ρ ΡΠ»Π΅Π΄ΡΡΡΠΈΠ΅ ΠΏΠΎΠ»ΠΎΠΆΠΈΡΠ΅Π»ΡΠ½ΡΠ΅ ΠΊΠ°ΡΠ΅ΡΡΠ²Π°:
- ΡΠΊΠΎΠ»ΠΎΠ³ΠΈΡΠ½ΠΎΡΡΡ;
- Π΄ΠΎΡΡΡΠΏΠ½Π°Ρ ΡΡΠΎΠΈΠΌΠΎΡΡΡ;
- ΠΏΡΠΎΡΡΠΎΠΉ ΠΌΠΎΠ½ΡΠ°ΠΆ;
- Π΄Π΅ΠΊΠΎΡΠ°ΡΠΈΠ²Π½ΠΎΡΡΡ ΠΏΡΠΈ ΠΎΡΠ΄Π΅Π»ΠΊΠ΅ Π»ΡΠ±ΡΠΌΠΈ ΠΌΠ°ΡΠ΅ΡΠΈΠ°Π»Π°ΠΌΠΈ;
- ΡΠΎΠ²Π½Π°Ρ ΠΏΡΠΎΡΠ½Π°Ρ ΠΏΠΎΠ²Π΅ΡΡ Π½ΠΎΡΡΡ;
- Π΄ΠΎΠ»Π³ΠΎΠ²Π΅ΡΠ½ΠΎΡΡΡ;
- Π²ΠΎΠ·ΠΌΠΎΠΆΠ½ΠΎΡΡΡ ΠΎΡΠΎΡΠΌΠ»Π΅Π½ΠΈΡ Π°ΡΠΎΡΠ½ΡΡ ΠΏΡΠΎΠ΅ΠΌΠΎΠ².
ΠΠΎΠ΄Π³ΠΎΡΠΎΠ²ΠΈΡΠ΅Π»ΡΠ½ΡΠ΅ ΡΠ°Π±ΠΎΡΡ
ΠΠΎΠ΄Π³ΠΎΡΠΎΠ²ΠΊΠ° ΠΏΠΎΠ²Π΅ΡΡ Π½ΠΎΡΡΠΈ ΡΠΎΡΡΠΎΠΈΡ ΠΈΠ· ΡΠ»Π΅Π΄ΡΡΡΠΈΡ Π΄Π΅ΠΉΡΡΠ²ΠΈΠΉ:
- ΡΠ΄Π°Π»Π΅Π½ΠΈΠ΅ ΠΏΠ΅Π½Ρ;
Π£Π΄Π°Π»Π΅Π½ΠΈΠ΅ ΠΎΡΡΠ°ΡΠΊΠΎΠ² ΠΏΠ΅Π½Ρ - ΡΠ½ΡΡΠΈΠ΅ ΡΠ°Π·ΠΌΠ΅ΡΠΎΠ² Π±ΡΠ΄ΡΡΠΈΡ
ΠΈΠ·Π΄Π΅Π»ΠΈΠΉ;
ΠΠΎΠΊΠΎΠ²ΡΠ΅ ΡΡΠΎΡΠΎΠ½Ρ Π·Π°ΠΌΠ΅ΡΡΡΡ ΡΠ½Π°ΡΡΠΆΠΈ ΠΈ Π²Π½ΡΡΡΠΈ - ΠΈΠ·Π³ΠΎΡΠΎΠ²Π»Π΅Π½ΠΈΠ΅ Π΄Π΅ΡΠ°Π»Π΅ΠΉ;
ΠΠ°Π½ΡΠ΅Π»ΡΡΡΠΊΠΈΠΌ Π½ΠΎΠΆΠΎΠΌ Π²ΡΡΠ΅Π·Π°ΡΡ Π»ΠΈΡΡΡ ΠΏΠΎ Π·Π°ΠΌΠ΅ΡΠ°ΠΌ - Π·Π°Π΄Π΅Π»ΠΊΠ° Π΄Π΅ΡΠ΅ΠΊΡΠΎΠ² ΠΎΡΠ½ΠΎΠ²Π°Π½ΠΈΡ ΠΈ Π²ΡΡΠ°Π²Π½ΠΈΠ²Π°Π½ΠΈΠ΅ ΠΏΠΎΠ²Π΅ΡΡ
Π½ΠΎΡΡΠΈ;
ΠΡΡΠ°Π²Π½ΠΈΠ²Π°ΡΡ ΠΏΠΎΠ²Π΅ΡΡ
Π½ΠΎΡΡΡ ΠΎΡΠΊΠΎΡΠ° - Π³ΡΡΠ½ΡΠΎΠ²ΠΊΠ° ΠΏΠΎΠ²Π΅ΡΡ Π½ΠΎΡΡΠΈ.
ΠΡΠΈ ΠΏΠΎΠΌΠΎΡΠΈ ΠΌΠΎΠ½ΡΠ°ΠΆΠ½ΠΎΠΉ ΠΏΠ΅Π½Ρ ΠΌΠΎΠΆΠ½ΠΎ Π²ΡΠΏΠΎΠ»Π½ΠΈΡΡ ΠΎΡΠ΄Π΅Π»ΠΊΡ ΠΎΠΊΠΎΠ½Π½ΠΎΠ³ΠΎ ΠΏΡΠΎΠ΅ΠΌΠ°, Π½Π΅ ΠΈΠΌΠ΅Ρ ΡΡΡΠΎΠΈΡΠ΅Π»ΡΠ½ΡΡ Π½Π°Π²ΡΠΊΠΎΠ². ΠΠ°ΠΆΠ½ΠΎ ΠΏΠΎΠΌΠ½ΠΈΡΡ, ΡΡΠΎ Π³ΠΈΠΏΡΠΎΠΊΠ°ΡΡΠΎΠ½ ΡΠ²Π»ΡΠ΅ΡΡΡ Ρ ΡΡΠΏΠΊΠΈΠΌ ΠΌΠ°ΡΠ΅ΡΠΈΠ°Π»ΠΎΠΌ, ΠΏΠΎΡΡΠΎΠΌΡ Π²ΡΡΠ΅Π·Π°ΡΡ ΠΈΠ· Π½Π΅Π³ΠΎ Π½Π΅ΠΎΠ±Ρ ΠΎΠ΄ΠΈΠΌΡΠ΅ Π΄Π΅ΡΠ°Π»ΠΈ Π½Π°Π΄ΠΎ Π°ΠΊΠΊΡΡΠ°ΡΠ½ΠΎ, Π½Π΅ ΠΏΡΠΈΠ»Π°Π³Π°Ρ ΡΡΠΈΠ»ΠΈΠΉ.
Π§ΡΠΎΠ±Ρ ΠΏΠΎΠ»ΡΡΠΈΡΡ ΡΠΎΠ²Π½ΡΠ΅ ΠΊΡΠ°Ρ Π² ΠΌΠ΅ΡΡΠ°Ρ ΡΡΠ΅Π·Π°, Π½Π΅ΠΎΠ±Ρ ΠΎΠ΄ΠΈΠΌΠΎ ΠΏΠΎ Π²ΡΡΠ΅ΡΡΠ΅Π½Π½ΠΎΠΉ Π»ΠΈΠ½ΠΈΠΈ Π½Π° Π»ΠΈΡΡΠ΅ Π³ΠΈΠΏΡΠΎΠΊΠ°ΡΡΠΎΠ½Π°, ΠΏΡΠΈΠ»ΠΎΠΆΠΈΠ² Π»ΠΈΠ½Π΅ΠΉΠΊΡ, ΠΏΡΠΈ ΠΏΠΎΠΌΠΎΡΠΈ ΠΎΡΡΡΠΎΠ³ΠΎ ΡΡΡΠΎΠΈΡΠ΅Π»ΡΠ½ΠΎΠ³ΠΎ Π½ΠΎΠΆΠ° Π²ΡΠΏΠΎΠ»Π½ΠΈΡΡ Π½Π°Π΄ΡΠ΅Π·. Π Π°Π·ΡΠ΅Π·Π°ΡΡ Π½Π΅ΠΎΠ±Ρ ΠΎΠ΄ΠΈΠΌΠΎ Π²Π΅ΡΡ Π½ΠΈΠΉ Π±ΡΠΌΠ°ΠΆΠ½ΡΠΉ ΡΠ»ΠΎΠΉ ΠΈ Π½Π΅ΠΌΠ½ΠΎΠ³ΠΎ Π²Π½ΡΡΡΠ΅Π½Π½ΠΈΠΉ. ΠΠ°ΡΠ΅ΠΌ Π²Π΄ΠΎΠ»Ρ Π½Π°Π΄ΡΠ΅Π·Π° ΠΌΠΎΠΆΠ½ΠΎ ΡΠ»Π΅Π³ΠΊΠ° ΠΏΠΎΡΡΡΡΠ°ΡΡ β Π³ΠΈΠΏΡΠΎΠΊΠ°ΡΡΠΎΠ½ Π½Π°Π΄Π»ΠΎΠΌΠΈΡΡΡ ΡΠ°ΠΌ ΠΏΠΎ Π½Π°ΠΌΠ΅ΡΠ΅Π½Π½ΠΎΠΉ Π»ΠΈΠ½ΠΈΠΈ.
ΠΠΎΠ½ΡΠ°ΠΆ Π½Π° ΠΏΠ΅Π½Ρ
- ΠΏΠ΅Π½Ρ Π½Π°Π½ΠΎΡΡΡ Π½Π° Π΄Π΅ΡΠ°Π»Ρ ΠΈ ΡΡΠ΅Π½Ρ;
ΠΠ°Π½ΠΎΡΡΡ Π½Π° ΠΏΠ°Π½Π΅Π»Ρ ΡΠ»ΠΎΠΉ ΠΏΠ΅Π½Ρ - ΡΡΠ°Π³ΠΌΠ΅Π½Ρ Π½Π΅Π½Π°Π΄ΠΎΠ»Π³ΠΎ ΠΏΡΠΈΠΊΠ»Π°Π΄ΡΠ²Π°ΡΡ ΠΈ ΡΠ±ΠΈΡΠ°ΡΡ, ΠΏΠΎΠΊΠ° Π½Π΅ ΠΏΡΠΎΠΈΠ·ΠΎΠΉΠ΄Π΅Ρ ΠΏΠΎΠ²ΡΠΎΡΠ½ΠΎΠ΅ ΡΠ°ΡΡΠΈΡΠ΅Π½ΠΈΠ΅ ΠΏΠ΅Π½Ρ. ΠΠ°ΡΠ΅ΠΌ ΡΡΠ°Π²ΡΡ Π½Π° ΠΌΠ΅ΡΡΠΎ;
ΠΠ΅ΡΠ°Π»Ρ ΠΏΡΠΈΠΊΠ»Π°Π΄ΡΠ²Π°ΡΡ ΠΊ ΠΎΡΠΊΠΎΡΡ Π½Π° Π½Π΅ΠΊΠΎΡΠΎΡΠΎΠ΅ Π²ΡΠ΅ΠΌΡ - ΡΠ°ΠΊΠΈΠΌ ΡΠΏΠΎΡΠΎΠ±ΠΎΠΌ ΠΊΡΠ΅ΠΏΡΡ Π²ΡΠ΅ ΡΡΠ°Π³ΠΌΠ΅Π½ΡΡ ΠΈ ΠΎΡΡΠ°Π²Π»ΡΡΡ Π²ΡΡΡΡ
Π°ΡΡ, Π·Π°ΡΠΈΠΊΡΠΈΡΠΎΠ²Π°Π² ΠΊΠΎΠ½ΡΡΡΡΠΊΡΠΈΡ ΠΌΠ°Π»ΡΡΠ½ΡΠΌ ΡΠΊΠΎΡΡΠ΅ΠΌ;
ΠΠ»Ρ ΡΠΈΠΊΡΠ°ΡΠΈΠΈ Π³ΠΈΠΏΡΠΎΠΊΠ°ΡΡΠΎΠ½Π° ΠΈΡΠΏΠΎΠ»ΡΠ·ΡΡΡ ΠΌΠ°Π»ΡΡΠ½ΡΠΉ ΡΠΊΠΎΡΡ - ΡΠ΅ΡΠ΅Π· 24 ΡΠ°ΡΠ° ΡΡΡΠΊΠΈ ΡΠΏΠ°ΠΊΠ»ΡΡΡ;
Π‘ΠΏΡΡΡΡ ΡΡΡΠΊΠΈ Π½Π΅ΠΎΠ±Ρ
ΠΎΠ΄ΠΈΠΌΠΎ Π·Π°ΡΠΏΠ°ΠΊΠ»Π΅Π²Π°ΡΡ ΡΡΡΠΊΠΈ - Π½Π° ΡΠ³Π»Ρ ΠΊΡΠ΅ΠΏΡΡ Π΄Π΅ΠΊΠΎΡΠ°ΡΠΈΠ²Π½ΡΠΉ ΡΠ³ΠΎΠ»ΠΎΠΊ.
Π£Π³Π»Ρ Π·Π°ΠΊΡΡΠ²Π°ΡΡ Π΄Π΅ΠΊΠΎΡΠ°ΡΠΈΠ²Π½ΡΠΌ ΡΠ³ΠΎΠ»ΠΊΠΎΠΌ
ΠΡΠ΄Π΅Π»ΠΊΠ° ΠΎΡΠΊΠΎΡΠΎΠ² ΠΏΠ»Π°ΡΡΠΈΠΊΠΎΠ²ΡΠΌΠΈ ΠΏΠ°Π½Π΅Π»ΡΠΌΠΈ
ΠΡΠ΄Π΅Π»ΠΊΠ° ΠΎΡΠΊΠΎΡΠΎΠ² ΠΎΠΊΠΎΠ½ Π²Π½ΡΡΡΠΈ ΠΌΠΎΠΆΠ΅Ρ ΠΎΡΡΡΠ΅ΡΡΠ²Π»ΡΡΡΡΡ Ρ ΠΏΠΎΠΌΠΎΡΡΡ ΠΏΠΎΡΠΎΠ»ΠΎΡΠ½ΡΡ ΠΏΠ»Π°ΡΡΠΈΠΊΠΎΠ²ΡΡ ΠΏΠ°Π½Π΅Π»Π΅ΠΉ ΠΈΠ»ΠΈ ΠΌΠ½ΠΎΠ³ΠΎΡΠ»ΠΎΠΉΠ½ΡΡ ΠΏΠ°Π½Π΅Π»Π΅ΠΉ ΡΠΈΠΏΠ° ΡΡΠ½Π΄Π²ΠΈΡ. Π£ΡΡΠ°Π½ΠΎΠ²ΠΊΠ° ΡΡΠΎΠ³ΠΎ ΠΌΠ°ΡΠ΅ΡΠΈΠ°Π»Π° Π½Π°ΡΡΠΎΠ»ΡΠΊΠΎ ΠΏΡΠΎΡΡΠ°, ΡΡΠΎ Π΅ΡΡΡ Π²ΠΎΠ·ΠΌΠΎΠΆΠ½ΠΎΡΡΡ Π²ΡΠΏΠΎΠ»Π½ΠΈΡΡ ΠΎΡΠ΄Π΅Π»ΠΊΡ ΠΏΠ»Π°ΡΡΠΈΠΊΠΎΠ²ΡΡ ΠΎΠΊΠΎΠ½ Π²Π½ΡΡΡΠΈ ΡΠ²ΠΎΠΈΠΌΠΈ ΡΡΠΊΠ°ΠΌΠΈ. ΠΠ°ΠΊ ΡΠ΄Π΅Π»Π°ΡΡ Π² Π΄ΠΎΠΌΠ΅ ΠΎΡΠΊΠΎΡΡ Π΄Π»Ρ ΠΏΠ»Π°ΡΡΠΈΠΊΠΎΠ²ΡΡ ΠΎΠΊΠΎΠ½ ΠΈΠ· ΠΏΠ»Π°ΡΡΠΈΠΊΠ°, Π±ΡΠ΄Π΅Ρ ΡΠ°ΡΡΠΊΠ°Π·Π°Π½ΠΎ Π½ΠΈΠΆΠ΅.
ΠΠ»Ρ ΠΎΡΠ΄Π΅Π»ΠΊΠΈ ΠΎΡΠΊΠΎΡΠΎΠ² ΠΈΠ·Π½ΡΡΡΠΈ ΡΠ°ΡΠ΅ Π²ΡΠ΅Π³ΠΎ ΠΈΡΠΏΠΎΠ»ΡΠ·ΡΡΡ ΠΏΠ°Π½Π΅Π»ΠΈ ΠΠΠ₯Π‘ΡΠ½Π΄Π²ΠΈΡ-ΠΏΠ°Π½Π΅Π»ΠΈ Π»ΡΡΡΠ΅ ΠΏΠΎΡΠΎΠ»ΠΎΡΠ½ΡΡ ΠΈΠ·-Π·Π° Π½Π°Π»ΠΈΡΠΈΡ ΡΠ»ΠΎΡ ΡΡΠ΅ΠΏΠ»ΠΈΡΠ΅Π»Ρ Π²Π½ΡΡΡΠΈ. ΠΠ΄Π½Π°ΠΊΠΎ ΠΏΠΎΡΠΎΠ»ΠΎΡΠ½ΡΠ΅ ΡΠ°ΠΊΠΆΠ΅ ΠΎΠ±Π»Π°Π΄Π°ΡΡ ΡΠ΅ΠΏΠ»ΠΎΠΈΠ·ΠΎΠ»ΡΡΠΈΠΎΠ½Π½ΡΠΌΠΈ ΠΊΠ°ΡΠ΅ΡΡΠ²Π°ΠΌΠΈ Π±Π»Π°Π³ΠΎΠ΄Π°ΡΡ Π²ΠΎΠ·Π΄ΡΡΠ½ΡΠΌ ΠΊΠ°ΠΌΠ΅ΡΠ°ΠΌ ΠΌΠ΅ΠΆΠ΄Ρ Π²Π½ΡΡΡΠ΅Π½Π½ΠΈΠΌΠΈ ΡΠ΅Π±ΡΠ°ΠΌΠΈ ΠΆΠ΅ΡΡΠΊΠΎΡΡΠΈ.
Π£ΡΡΠ°Π½ΠΎΠ²ΠΊΠ° ΠΈ ΡΠ΅ΠΌΠΎΠ½Ρ ΠΎΡΠΊΠΎΡΠΎΠ² Π²Π½ΡΡΡΠΈ Π·Π΄Π°Π½ΠΈΡ ΠΏΡΠΈ ΠΏΠΎΠΌΠΎΡΠΈ ΡΡΠΈΡ ΠΎΡΠ΄Π΅Π»ΠΎΡΠ½ΡΡ ΠΌΠ°ΡΠ΅ΡΠΈΠ°Π»ΠΎΠ² Π²ΠΎΠ·ΠΌΠΎΠΆΠ½Ρ Π±Π»Π°Π³ΠΎΠ΄Π°ΡΡ ΠΈΡ ΠΊΠ°ΡΠ΅ΡΡΠ²Π°ΠΌ:
- ΠΎΡΠΊΠΎΡΡ ΠΈΠ· ΠΠΠ₯ Π΄ΠΎΠ»Π³ΠΎΠ²Π΅ΡΠ½Ρ;
- ΠΈΡΠΏΠΎΠ»ΡΠ·ΠΎΠ²Π°Π½ΠΈΠ΅ ΠΏΠ°Π½Π΅Π»Π΅ΠΉ Π΄Π»Ρ ΠΎΡΠ΄Π΅Π»ΠΊΠΈ ΠΎΠΊΠΎΠ½Π½ΡΡ ΠΎΡΠΊΠΎΡΠΎΠ² ΠΏΡΠΈΠ΄Π°Π΅Ρ ΠΈΠΌ ΠΏΡΠΈΠ²Π»Π΅ΠΊΠ°ΡΠ΅Π»ΡΠ½ΡΠΉ Π°ΠΊΠΊΡΡΠ°ΡΠ½ΡΠΉ Π²Π½Π΅ΡΠ½ΠΈΠΉ Π²ΠΈΠ΄;
- Π²Π°ΡΠΈΠ°Π½ΡΡ ΠΎΡΠ΄Π΅Π»ΠΊΠΈ ΠΌΠΎΠ³ΡΡ Π±ΡΡΡ ΡΠ°ΠΌΡΠΌΠΈ ΡΠ°Π·Π½ΠΎΠΎΠ±ΡΠ°Π·Π½ΡΠΌΠΈ Π±Π»Π°Π³ΠΎΠ΄Π°ΡΡ ΡΠΈΡΠΎΠΊΠΎΠΌΡ ΡΠΏΠ΅ΠΊΡΡΡ ΡΠ²Π΅ΡΠΎΠ²ΡΡ ΡΠ΅ΡΠ΅Π½ΠΈΠΉ,
- ΠΊΠΎΡΠΎΡΡΠ΅ ΠΈΠΌΠ΅ΡΡ Π½Π°ΡΡΠΆΠ½ΡΠ΅ ΠΏΠΎΠ²Π΅ΡΡ Π½ΠΎΡΡΠΈ ΠΏΠ°Π½Π΅Π»Π΅ΠΉ;
- Π²ΠΎΠ·ΠΌΠΎΠΆΠ½Π° ΡΡΡΠ°Π½ΠΎΠ²ΠΊΠ° ΠΏΠ»Π°ΡΡΠΈΠΊΠ° Π½Π° Π°ΡΠΎΡΠ½ΡΠ΅ ΠΊΠΎΠ½ΡΡΡΡΠΊΡΠΈΠΈ;
- ΡΠ΅ΠΌΠΎΠ½Ρ ΠΏΠ»Π°ΡΡΠΈΠΊΠΎΠ²ΡΡ ΠΎΡΠΊΠΎΡΠΎΠ² Π½Π΅ ΡΠΎΡΡΠ°Π²Π»ΡΠ΅Ρ ΡΡΡΠ΄Π°;
- ΠΏΡΠΎΡΡΠΎΡΠ° ΠΌΠΎΠ½ΡΠ°ΠΆΠ° β ΠΎΠΊΠΎΠ½Π½ΡΠ΅ ΠΏΡΠΎΠ΅ΠΌΡ ΠΎΡΠ΄Π΅Π»ΡΠ²Π°ΡΡ ΡΠ²ΠΎΠΈΠΌΠΈ ΡΡΠΊΠ°ΠΌΠΈ, ΠΏΡΠΈ ΡΡΠΎΠΌ ΡΡΡΠ°Π½ΠΎΠ²ΠΊΠ° Π½Π΅ Π·Π°Π½ΠΈΠΌΠ°Π΅Ρ ΠΌΠ½ΠΎΠ³ΠΎ Π²ΡΠ΅ΠΌΠ΅Π½ΠΈ;
- ΠΏΠ²Ρ Ρ ΠΎΡΠΎΡΠΎ ΠΏΠΎΠ΄Π΄Π°Π΅ΡΡΡ ΠΎΠ±ΡΠ°Π±ΠΎΡΠΊΠ΅;
- ΠΎΡΠ΄Π΅Π»Π°Π½Π½ΡΠ΅ ΠΈΠ·Π½ΡΡΡΠΈ ΠΏΠ»Π°ΡΡΠΈΠΊΠΎΠΌ ΠΎΡΠΊΠΎΡΡ ΠΏΡΠΎΡΡΡ Π² ΡΡ ΠΎΠ΄Π΅;
- ΠΎΡΠ΄Π΅Π»ΠΊΠ° ΠΎΠΊΠΎΠ½Π½ΡΡ ΠΏΡΠΎΠ΅ΠΌΠΎΠ² Π΄Π°Π½Π½ΡΠΌ ΠΌΠ°ΡΠ΅ΡΠΈΠ°Π»ΠΎΠΌ ΠΏΠΎΠ²ΡΡΠ°Π΅Ρ ΡΠ½Π΅ΡΠ³ΠΎΡΡΡΠ΅ΠΊΡΠΈΠ²Π½ΠΎΡΡΡ ΠΎΠΊΠΎΠ½Π½ΠΎΠΉ ΡΠΈΡΡΠ΅ΠΌΡ;
- Π²Π½ΡΡΡΠ΅Π½Π½ΡΡ ΠΎΡΠ΄Π΅Π»ΠΊΠ° ΠΎΠΊΠΎΠ½ ΠΏΡΠ΅Π΄ΠΎΡΠ²ΡΠ°ΡΠ°Π΅Ρ ΠΈΡ Π·Π°ΠΏΠΎΡΠ΅Π²Π°Π½ΠΈΠ΅ ΠΈ ΠΏΡΠΎΠΌΠ΅ΡΠ·Π°Π½ΠΈΠ΅.
ΠΠΎΠ½ΡΠ°ΠΆ
ΠΠ°ΠΊ ΡΡΡΠ°Π½ΠΎΠ²ΠΈΡΡ Π²Π½ΡΡΡΠ΅Π½Π½ΠΈΠ΅ ΠΎΡΠΊΠΎΡΡ Π΄Π»Ρ ΠΎΠΊΠΎΠ½ ΠΈΠ· ΠΠΠ₯ ΠΏΠ°Π½Π΅Π»Π΅ΠΉ, ΠΏΠΎΠΊΠ°Π·Π°Π½ΠΎ Π½ΠΈΠΆΠ΅.
- ΠΈΠ·Π»ΠΈΡΠΊΠΈ ΠΌΠΎΠ½ΡΠ°ΠΆΠ½ΠΎΠΉ ΠΏΠ΅Π½Ρ ΡΠ΄Π°Π»ΡΠ΅ΠΌ ΠΏΡΠΈ ΠΏΠΎΠΌΠΎΡΠΈ ΠΊΠ°Π½ΡΠ΅Π»ΡΡΡΠΊΠΎΠ³ΠΎ ΠΈΠ»ΠΈ ΡΡΡΠΎΠΈΡΠ΅Π»ΡΠ½ΠΎΠ³ΠΎ Π½ΠΎΠΆΠ°;
ΠΠ»Ρ ΡΠ΄Π°Π»Π΅Π½ΠΈΡ ΠΎΡΡΠ°ΡΠΊΠΎΠ² ΠΏΠ΅Π½Ρ ΠΈΡΠΏΠΎΠ»ΡΠ·ΡΡΡ ΠΊΠ°Π½ΡΠ΅Π»ΡΡΡΠΊΠΈΠΉ ΠΈΠ»ΠΈ ΡΡΡΠΎΠΈΡΠ΅Π»ΡΠ½ΡΠΉ Π½ΠΎΠΆ - ΠΏΠΎ ΠΏΠ΅ΡΠΈΠΌΠ΅ΡΡΡ ΠΎΠΊΠΎΠ½Π½ΠΎΠ³ΠΎ ΠΏΡΠΎΠ΅ΠΌΠ° ΠΎΠΊΠΎΠ»ΠΎ ΡΠ°ΠΌΡ ΠΏΡΠΈ ΠΏΠΎΠΌΠΎΡΠΈ ΡΠ°ΠΌΠΎΡΠ΅Π·ΠΎΠ² ΡΠΈΠΊΡΠΈΡΡΠ΅ΠΌ Π΄Π΅ΡΠ΅Π²ΡΠ½Π½ΡΠΉ Π±ΡΡΡΠΎΠΊ;
ΠΠ°ΠΊΡΠ΅ΠΏΠ»ΡΡΡ Π΄Π΅ΡΠ΅Π²ΡΠ½Π½ΡΠΉ Π±ΡΡΡΠΎΠΊ ΠΏΠΎ ΠΏΠ΅ΡΠΈΠΌΠ΅ΡΡΡ ΡΠ°ΠΌΡ - ΠΊ Π±ΡΡΡΠΊΡ ΠΊΡΠ΅ΠΏΠΈΠΌ ΡΡΠ°ΡΡΠΎΠ²ΡΠΉ ΠΏΡΠΎΡΠΈΠ»Ρ;
Π Π±ΡΡΡΠΊΡ ΠΏΡΠΈΠΊΡΠ΅ΠΏΠ»ΡΡΡ ΡΡΠ°ΡΡΠΎΠ²ΡΠΉ ΠΏΡΠΎΡΠΈΠ»Ρ - ΠΏΠΎ Π½Π°ΡΡΠΆΠ½ΠΎΠΌΡ ΠΏΠ΅ΡΠΈΠΌΠ΅ΡΡΡ ΠΎΠΊΠ½Π° ΡΡΡΠ°Π½Π°Π²Π»ΠΈΠ²Π°Π΅ΠΌ ΡΠ΅ΠΉΠΊΡ;
Π Π΅ΠΉΠΊΠ° Π·Π°ΠΊΡΠ΅ΠΏΠ»ΡΠ΅ΡΡΡ ΠΏΠΎ Π½Π°ΡΡΠΆΠ½ΠΎΠΌΡ ΠΏΠ΅ΡΠΈΠΌΠ΅ΡΡΡ ΡΠ°ΠΌΡ - ΡΠ½Π°ΡΠ°Π»Π° Π»ΡΡΡΠ΅ Π²ΡΡΠ°Π²Π»ΡΡΡ Π±ΠΎΠΊΠΎΠ²ΡΠ΅ ΡΠ»Π΅ΠΌΠ΅Π½ΡΡ;
ΠΠΎΠΊΠΎΠ²ΡΠ΅ ΠΏΠ°Π½Π΅Π»ΠΈ ΡΡΡΠ°Π½Π°Π²Π»ΠΈΠ²Π°ΡΡ ΠΏΠ΅ΡΠ²ΡΠΌΠΈ - Π·Π°ΡΠ΅ΠΌ Π²ΡΡΠ°Π²Π»ΡΠ΅ΠΌ Π²Π΅ΡΡ
Π½ΡΡ ΠΏΠ°Π½Π΅Π»Ρ, ΠΎΡΠ³ΠΈΠ±Π°Π΅ΠΌ, Π½Π΅ΠΌΠ½ΠΎΠ³ΠΎ Π·Π°ΠΏΠ΅Π½ΠΈΠ²Π°Π΅ΠΌ ΠΈ ΡΠΈΠΊΡΠΈΡΡΠ΅ΠΌ Π² Π½Π΅ΠΎΠ±Ρ
ΠΎΠ΄ΠΈΠΌΠΎΠΌ ΠΏΠΎΠ»ΠΎΠΆΠ΅Π½ΠΈΠΈ;
ΠΠ΅ΠΆΠ΄Ρ Π²Π΅ΡΡ
Π½ΠΈΠΌ ΠΎΡΠΊΠΎΡΠΎΠΌ ΠΈ ΠΏΠ°Π½Π΅Π»ΡΡ ΠΠΠ₯ Π·Π°Π΄ΡΠ²Π°ΡΡ Π½Π΅Π±ΠΎΠ»ΡΡΠΎΠΉ ΡΠ»ΠΎΠΉ ΠΏΠ΅Π½Ρ - ΡΠ°ΠΊΠΈΠΌ ΠΆΠ΅ ΠΎΠ±ΡΠ°Π·ΠΎΠΌ ΡΠΈΠΊΡΠΈΡΡΠ΅ΠΌ Π±ΠΎΠΊΠΎΠ²ΡΠ΅ ΡΠ°ΡΡΠΈ;
- ΠΏΠΎΡΠ»Π΅ ΡΠΎΠ³ΠΎ ΠΊΠ°ΠΊ ΠΊΠΎΠ½ΡΡΡΡΠΊΡΠΈΡ ΠΏΡΠΎΡΠΎΡ
Π½Π΅Ρ, ΡΠ³Π»ΠΎΠ²ΡΠ΅ ΡΠ°ΡΡΠΈ ΠΎΡΠ΄Π΅Π»ΡΠ²Π°ΡΡ Π΄Π΅ΠΊΠΎΡΠ°ΡΠΈΠ²Π½ΡΠΌΠΈ ΡΠ»Π΅ΠΌΠ΅Π½ΡΠ°ΠΌΠΈ β ΡΠ³ΠΎΠ»ΠΊΠ°ΠΌΠΈ ΠΈΠ»ΠΈ Π½Π°Π»ΠΈΡΠ½ΠΈΠΊΠ°ΠΌΠΈ.
Π£Π³Π»Ρ Π·Π°ΠΊΡΡΠ²Π°ΡΡ Π½Π°Π»ΠΈΡΠ½ΠΈΠΊΠ°ΠΌΠΈ
ΠΠΎΠ½ΡΠ°ΠΆ ΠΏΠ°Π½Π΅Π»Π΅ΠΉ ΡΠΈΠΏΠ° ΡΡΠ½Π΄Π²ΠΈΡ ΠΌΠΎΠΆΠ΅Ρ ΠΏΡΠΎΠΈΡΡ ΠΎΠ΄ΠΈΡΡ ΡΠ°ΠΊΠΈΠΌ ΠΆΠ΅ ΠΎΠ±ΡΠ°Π·ΠΎΠΌ ΠΈΠ»ΠΈ Π±Π΅Π· ΡΡΠ°ΡΡΠΎΠ²ΠΎΠ³ΠΎ ΠΏΡΠΎΡΠΈΠ»Ρ. Π ΡΡΠΎΠΌ ΡΠ»ΡΡΠ°Π΅ ΠΏΠ°Π½Π΅Π»Ρ ΠΏΠΎΠΌΠ΅ΡΠ°Π΅ΡΡΡ Π² ΠΏΠ°Π·, Π²ΡΡΠ΅Π·Π°Π½Π½ΡΠΉ Π² ΠΌΠΎΠ½ΡΠ°ΠΆΠ½ΠΎΠΉ ΠΏΠ΅Π½Π΅. Π’Π°ΠΊΠΎΠΉ ΡΠΏΠΎΡΠΎΠ± ΡΡΡΠ°Π½ΠΎΠ²ΠΊΠΈ Π°ΠΊΡΡΠ°Π»Π΅Π½, ΠΊΠΎΠ³Π΄Π° Π½Π΅Ρ Π²ΠΎΠ·ΠΌΠΎΠΆΠ½ΠΎΡΡΠΈ ΡΠ°Π·ΠΌΠ΅ΡΡΠΈΡΡ Π±ΡΡΡΠΎΠΊ ΠΏΠΎ ΠΏΠ΅ΡΠΈΠΌΠ΅ΡΡΡ ΠΎΠΊΠΎΠ½Π½ΠΎΠΉ ΡΠ°ΠΌΡ.
ΠΠ°Π»ΠΈΡΠ½ΠΈΠΊΠΈ
ΠΠ°Π»ΠΈΡΠ½ΠΈΠΊΠΈ ΠΈΠ»ΠΈ ΠΎΠ±Π½Π°Π»ΠΈΡΠΊΠ° Π΄Π»Ρ Π²Π½ΡΡΡΠ΅Π½Π½ΠΈΡ ΠΎΡΠΊΠΎΡΠΎΠ² Π΄Π»Ρ ΠΎΠΊΠΎΠ½ ΠΏΠ²Ρ ΠΌΠΎΠΆΠ΅Ρ Π²ΡΠΏΠΎΠ»Π½ΡΡΡΡΡ ΠΈΠ· ΡΠ°Π·Π½ΡΡ ΠΌΠ°ΡΠ΅ΡΠΈΠ°Π»ΠΎΠ², Π½ΠΎ Π΅Π΅ ΡΡΠ½ΠΊΡΠΈΠΎΠ½Π°Π»ΡΠ½ΠΎΠ΅ Π½Π°Π·Π½Π°ΡΠ΅Π½ΠΈΠ΅ Π΅Π΄ΠΈΠ½ΠΎ β Π·Π°ΡΠΈΡΠ° ΠΌΠΎΠ½ΡΠ°ΠΆΠ½ΠΎΠ³ΠΎ ΡΠ²Π° ΠΎΡ ΡΠ°Π·ΡΡΡΠ΅Π½ΠΈΡ ΠΈ ΠΏΡΠΈΠ΄Π°Π½ΠΈΠ΅ ΠΎΠΊΠΎΠ½Π½ΠΎΠΌΡ ΠΏΡΠΎΠ΅ΠΌΡ ΡΡΡΠ΅ΡΠΈΡΠ½ΠΎΠ³ΠΎ Π²Π½Π΅ΡΠ½Π΅Π³ΠΎ Π²ΠΈΠ΄Π°.
ΠΠΈΠ΄Ρ Π½Π°Π»ΠΈΡΠ½ΠΈΠΊΠΎΠ²
ΠΠ°Π»ΠΈΡΠ½ΠΈΠΊΠΈ ΡΠ°Π·Π»ΠΈΡΠ°ΡΡΡΡ ΠΌΠ΅ΠΆΠ΄Ρ ΡΠΎΠ±ΠΎΠΉ Π²Π½Π΅ΡΠ½ΠΈΠΌ Π²ΠΈΠ΄ΠΎΠΌ ΠΈ ΡΡΠ½ΠΊΡΠΈΠΎΠ½Π°Π»ΡΠ½ΠΎΡΡΡΡ:
| ΠΠ»ΠΎΡΠΊΠΈΠ΅ Π½Π°Π»ΠΈΡΠ½ΠΈΠΊΠΈ. ΠΡΠΎ ΡΠ°ΠΌΡΠΉ ΠΏΡΠΎΡΡΠΎΠΉ Π² ΠΈΡΠΏΠΎΠ»Π½Π΅Π½ΠΈΠΈ ΠΈ Π½Π΅Π΄ΠΎΡΠΎΠ³ΠΎΠΉ Π²ΠΈΠ΄ ΠΎΠ±Π½Π°Π»ΠΈΡΠΊΠΈ. | |
| ΠΡΠΎΡΠΈΠ»ΠΈΡΠΎΠ²Π°Π½Π½ΡΠ΅ Π½Π°Π»ΠΈΡΠ½ΠΈΠΊΠΈ ΠΈΠΌΠ΅ΡΡ Π²ΡΠΏΡΠΊΠ»ΡΡ ΠΏΠΎΠ²Π΅ΡΡ Π½ΠΎΡΡΡ ΡΠ°Π·Π½ΠΎΠ³ΠΎ ΠΏΡΠΎΡΠΈΠ»Ρ, Π½Π°ΠΏΡΠ°Π²Π»Π΅Π½Π½ΡΡ Π½Π° ΡΡΠΈΠ»Π΅Π½ΠΈΠ΅ Π΄Π΅ΠΊΠΎΡΠ°ΡΠΈΠ²Π½ΠΎΠΉ ΡΡΠ½ΠΊΡΠΈΠΈ ΠΎΠ±Π½Π°Π»ΠΈΡΠΊΠΈ. | |
| Π€Π°ΡΠΎΠ½Π½ΡΠ΅ Π½Π°Π»ΠΈΡΠ½ΠΈΠΊΠΈ Β ΠΌΠΎΠ³ΡΡ ΠΈΠΌΠ΅ΡΡ ΡΠ»ΠΎΠΆΠ½ΡΠΉ ΡΠ΅Π»ΡΠ΅Ρ ΠΈ ΠΈΠΌΠΈΡΠΈΡΠΎΠ²Π°ΡΡ Π½Π°ΡΡΡΠ°Π»ΡΠ½ΠΎΠ΅ Π΄Π΅ΡΠ΅Π²ΠΎ. | |
| Π Π΅Π·Π½ΠΎΠΉ Π½Π°Π»ΠΈΡΠ½ΠΈΠΊ β ΡΡΠΎ ΡΠ°ΠΌΡΠΉ Π΄ΠΎΡΠΎΠ³ΠΎΠΉ Π²ΠΈΠ΄ ΠΎΠ±Π½Π°Π»ΠΈΡΠΊΠΈ, Π²ΡΠΏΠΎΠ»Π½ΡΠ΅ΠΌΡΠΉ ΠΏΠΎΠ΄ Π·Π°ΠΊΠ°Π· ΠΏΠΎ ΠΈΠ½Π΄ΠΈΠ²ΠΈΠ΄ΡΠ°Π»ΡΠ½ΡΠΌ ΡΠ°Π·ΠΌΠ΅ΡΠ°ΠΌ. |
ΠΠ°ΡΠ΅ΡΠΈΠ°Π»Ρ Π΄Π»Ρ ΠΈΠ·Π³ΠΎΡΠΎΠ²Π»Π΅Π½ΠΈΡ
Π‘Π°ΠΌΡΠΌ ΡΠ°ΡΠΏΡΠΎΡΡΡΠ°Π½Π΅Π½Π½ΡΠΌ ΠΌΠ°ΡΠ΅ΡΠΈΠ°Π»ΠΎΠΌ Π΄Π»Ρ ΠΈΠ·Π³ΠΎΡΠΎΠ²Π»Π΅Π½ΠΈΡ ΠΎΠ±Π½Π°Π»ΠΈΡΠΊΠΈ ΡΠ²Π»ΡΠ΅ΡΡΡ Π»ΠΈΡΡΠΎΠ²ΠΎΠΉ ΠΏΠ»Π°ΡΡΠΈΠΊ. ΠΠ³ΠΎ ΠΏΡΠΈΠΌΠ΅Π½ΡΡΡ Π΄Π»Ρ ΠΈΠ·Π³ΠΎΡΠΎΠ²Π»Π΅Π½ΠΈΡ Π±ΡΠ΄ΠΆΠ΅ΡΠ½ΡΡ ΠΏΠ»ΠΎΡΠΊΠΈΡ Π½Π°Π»ΠΈΡΠ½ΠΈΠΊΠΎΠ², ΠΊΠΎΡΠΎΡΡΠ΅ ΠΌΠΎΠ³ΡΡ ΠΏΡΠΈΠΌΠ΅Π½ΡΡΡΡΡ ΠΏΡΠΈ ΠΎΡΠ΄Π΅Π»ΠΊΠ΅ ΠΎΠΊΠΎΠ½ Π²Π½ΡΡΡΠΈ ΠΏΠΎΠΌΠ΅ΡΠ΅Π½ΠΈΡ ΠΈ ΡΠ½Π°ΡΡΠΆΠΈ.
ΠΡΠΎΠΌΡ ΠΌΠ°ΡΠ΅ΡΠΈΠ°Π»Ρ Π½Π΅ ΡΡΡΠ°ΡΠ½Ρ ΡΠ΅ΠΌΠΏΠ΅ΡΠ°ΡΡΡΠ½ΡΠ΅ ΠΏΠ΅ΡΠ΅ΠΏΠ°Π΄Ρ, Π²ΠΎΠ·Π΄Π΅ΠΉΡΡΠ²ΠΈΠ΅ Π²Π»Π°Π³ΠΈ ΠΈΠ»ΠΈ ΡΠΎΠ»Π½Π΅ΡΠ½ΠΎΠ³ΠΎ ΡΠ²Π΅ΡΠ°. ΠΠ³ΠΎ ΠΏΠΎΠ²Π΅ΡΡ Π½ΠΎΡΡΡ ΠΌΠΎΠΆΠ΅Ρ Π»Π°ΠΌΠΈΠ½ΠΈΡΠΎΠ²Π°ΡΡΡΡ ΠΈ ΠΏΡΠΈΠΎΠ±ΡΠ΅ΡΠ°ΡΡ Π»ΡΠ±ΠΎΠΉ ΡΠ²Π΅Ρ ΠΈΠ»ΠΈ ΠΈΠΌΠΈΡΠΈΡΠΎΠ²Π°ΡΡ ΡΠ°Π·Π»ΠΈΡΠ½ΡΠ΅ ΠΏΠΎΡΠΎΠ΄Ρ Π½Π°ΡΡΡΠ°Π»ΡΠ½ΠΎΠΉ Π΄ΡΠ΅Π²Π΅ΡΠΈΠ½Ρ. ΠΠΎΡΡΠΎΠΌΡ ΠΏΠΎΠ΄ΠΎΠ±ΡΠ°ΡΡ ΠΎΠ±Π½Π°Π»ΠΈΡΠΊΡ ΠΏΠΎΠ΄ ΡΠ²Π΅Ρ ΡΠ°ΡΠ°Π΄Π° ΠΎΠΊΠ½Π° Π½Π΅ ΡΠΎΡΡΠ°Π²ΠΈΡ ΡΡΡΠ΄Π°.
ΠΠ±Π½Π°Π»ΠΈΡΠΊΠ° ΠΈΠ· ΠΏΠ»Π°ΡΡΠΈΠΊΠ° ΠΌΠΎΠΆΠ΅Ρ Π±ΡΡΡ Π²ΡΠΏΠΎΠ»Π½Π΅Π½Π° ΠΏΠΎΠ΄ Π»ΡΠ±ΠΎΠΉ ΡΠ°ΡΠ°Π΄ΠΠ»Ρ ΠΏΠ»Π°ΡΡΠΈΠΊΠΎΠ²ΡΡ Π½Π°Π»ΠΈΡΠ½ΠΈΠΊΠΎΠ² Π½Π΅ΡΠ²ΠΎΠΉΡΡΠ²Π΅Π½Π½Π° Π΄Π΅ΡΠΎΡΠΌΠ°ΡΠΈΡ ΠΎΡ ΡΠ΅ΠΌΠΏΠ΅ΡΠ°ΡΡΡΠ½ΡΡ ΠΏΠ΅ΡΠ΅ΠΏΠ°Π΄ΠΎΠ² ΠΈ Π²ΠΎΠ·Π΄Π΅ΠΉΡΡΠ²ΠΈΡ Π²Π»Π°Π³ΠΈ.
ΠΡΠΎΡΠΈΠ»ΠΈΡΠΎΠ²Π°Π½Π½ΡΠ΅ Π½Π°Π»ΠΈΡΠ½ΠΈΠΊΠΈ ΠΈΠ· ΠΠΠ₯ ΠΏΡΠΎΡΠΈΠ»Ρ ΠΈΠΌΠ΅ΡΡ ΡΠ΅ ΠΆΠ΅ ΡΠ²ΠΎΠΉΡΡΠ²Π°, Π½ΠΎ ΠΌΠΎΠ³ΡΡ ΠΎΠ±Π»Π°Π΄Π°ΡΡ ΡΠΈΠ³ΡΡΠ½ΠΎΠΉ ΠΏΠΎΠ²Π΅ΡΡ Π½ΠΎΡΡΡΡ. ΠΠ½ΠΈ ΡΠ°ΠΊΠΆΠ΅ ΠΏΡΠΈΠΌΠ΅Π½ΡΡΡΡΡ Π΄Π»Ρ Π²Π½ΡΡΡΠ΅Π½Π½Π΅Π³ΠΎ ΠΈ Π½Π°ΡΡΠΆΠ½ΠΎΠ³ΠΎ Π΄Π΅ΠΊΠΎΡΠΈΡΠΎΠ²Π°Π½ΠΈΡ ΠΎΠΊΠΎΠ½.
ΠΠ°Π»ΠΈΡΠ½ΠΈΠΊΠΈ ΠΈΠ· ΠΠΠ€ ΡΠ°ΠΊΠΆΠ΅ ΠΌΠΎΠ³ΡΡ Π±ΡΡΡ ΠΏΠ»ΠΎΡΠΊΠΈΠΌΠΈ ΠΈΠ»ΠΈ ΠΏΡΠΎΡΠΈΠ»ΠΈΡΠΎΠ²Π°Π½Π½ΡΠΌΠΈ, Π½ΠΎ ΠΏΡΠΈΠΌΠ΅Π½ΡΡΡΡΡ ΠΎΠ½ΠΈ ΠΈΡΠΊΠ»ΡΡΠΈΡΠ΅Π»ΡΠ½ΠΎ Π²Π½ΡΡΡΠΈ ΠΏΠΎΠΌΠ΅ΡΠ΅Π½ΠΈΡ, ΡΠ°ΠΊ ΠΊΠ°ΠΊ ΡΠ²ΠΎΠΉΡΡΠ²Π° ΠΠΠ€ Π½Π΅ ΠΏΠΎΠ·Π²ΠΎΠ»ΡΡΡ ΠΈΡ ΠΏΡΠΈΠΌΠ΅Π½ΡΡΡ Π½Π° ΠΎΡΠΊΡΡΡΠΎΠΌ Π²ΠΎΠ·Π΄ΡΡ Π΅ ΠΏΠΎΠ΄ Π²ΠΎΠ·Π΄Π΅ΠΉΡΡΠ²ΠΈΠ΅ΠΌ ΠΎΠΊΡΡΠΆΠ°ΡΡΠΈΡ ΠΏΡΠΈΡΠΎΠ΄Π½ΡΡ ΡΠ²Π»Π΅Π½ΠΈΠΉ.
ΠΠ»Ρ Π½Π°ΡΡΠΆΠ½ΠΎΠ³ΠΎ ΠΏΡΠΈΠΌΠ΅Π½Π΅Π½ΠΈΡ ΠΌΠΎΠΆΠ΅Ρ ΠΈΡΠΏΠΎΠ»ΡΠ·ΠΎΠ²Π°ΡΡΡΡ ΠΎΠ±Π½Π°Π»ΠΈΡΠΊΠ° ΠΈΠ· ΠΏΠ»ΠΎΡΠ½ΠΎΠ³ΠΎ ΠΏΠ΅Π½ΠΎΠΏΠ»Π°ΡΡΠ°. ΠΡΠΎΡ ΠΌΠ°ΡΠ΅ΡΠΈΠ°Π» Π»Π΅Π³ΠΊΠΎ ΠΏΠΎΠ΄Π΄Π°Π΅ΡΡΡ ΠΎΠ±ΡΠ°Π±ΠΎΡΠΊΠ΅ ΠΈ ΠΌΠΎΠ½ΡΠ°ΠΆΡ. ΠΠ· ΠΏΠ΅Π½ΠΎΠΏΠ»Π°ΡΡΠ° ΠΌΠΎΠΆΠ½ΠΎ Π²ΡΡΠ΅Π·Π°ΡΡ ΡΠ°ΠΌΡΠ΅ Π·Π°ΠΌΡΡΠ»ΠΎΠ²Π°ΡΡΠ΅ ΠΈ ΡΠ»ΠΎΠΆΠ½ΡΠ΅ ΡΠΎΡΠΌΡ. ΠΠ³ΠΎ ΠΌΠΎΠΆΠ½ΠΎ Π΄Π΅ΠΊΠΎΡΠΈΡΠΎΠ²Π°ΡΡ Π»ΡΠ±ΡΠΌΠΈ ΠΎΡΠ΄Π΅Π»ΠΎΡΠ½ΡΠΌΠΈ ΠΌΠ°ΡΠ΅ΡΠΈΠ°Π»Π°ΠΌΠΈ. ΠΠ½ ΠΈΠΌΠ΅Π΅Ρ Π½ΠΈΡΡΠΎΠΆΠ½ΠΎ ΠΌΠ°Π»ΡΠΉ Π²Π΅Ρ, ΠΏΠΎΡΡΠΎΠΌΡ Π½Π΅ ΠΎΠΊΠ°Π·ΡΠ²Π°Π΅Ρ Π½Π° ΡΡΠ΅Π½Ρ Π½Π°Π³ΡΡΠ·ΠΊΡ.
ΠΠ»Ρ Π½Π°ΡΡΠΆΠ½ΠΎΠΉ ΠΎΡΠ΄Π΅Π»ΠΊΠΈ ΠΎΠΊΠ½Π° ΠΌΠΎΠ³ΡΡ ΠΏΡΠΈΠΌΠ΅Π½ΡΡΡΡΡ Π½Π°Π»ΠΈΡΠ½ΠΈΠΊΠΈ ΠΈΠ· ΠΏΠ΅Π½ΠΎΠΏΠ»Π°ΡΡΠ°Π‘Π°ΠΌΡΠΌ Π΄ΠΎΡΠΎΠ³ΠΈΠΌ Π²Π°ΡΠΈΠ°Π½ΡΠΎΠΌ ΠΎΡΠΎΡΠΌΠ»Π΅Π½ΠΈΡ ΠΎΠΊΠ½Π° ΡΠ²Π»ΡΠ΅ΡΡΡ ΡΡΡΡΠΎΠΉΡΡΠ²ΠΎ Π΄Π΅ΡΠ΅Π²ΡΠ½Π½ΠΎΠΉ ΡΠ΅Π·Π½ΠΎΠΉ ΠΎΠ±Π½Π°Π»ΠΈΡΠΊΠΈ. Π Π΅Π·ΡΠ±Π° ΠΌΠΎΠΆΠ΅Ρ Π±ΡΡΡ Π²ΡΠΏΠΎΠ»Π½Π΅Π½Π° ΡΡΡΠ½ΡΠΌ ΠΈΠ»ΠΈ ΠΌΠ΅Ρ Π°Π½ΠΈΠ·ΠΈΡΠΎΠ²Π°Π½Π½ΡΠΌ ΡΠΏΠΎΡΠΎΠ±ΠΎΠΌ. Π ΡΡΠ½Π°Ρ ΡΠ°Π±ΠΎΡΠ° ΡΡΠΎΠΈΡ ΠΎΡΠ΅Π½Ρ Π΄ΠΎΡΠΎΠ³ΠΎ Π±Π»Π°Π³ΠΎΠ΄Π°ΡΡ ΡΠ²ΠΎΠ΅ΠΉ ΠΈΠ½Π΄ΠΈΠ²ΠΈΠ΄ΡΠ°Π»ΡΠ½ΠΎΡΡΠΈ ΠΈ ΡΠΊΡΠΊΠ»ΡΠ·ΠΈΠ²Π½ΠΎΡΡΠΈ.
ΠΠ΅ΡΠ΅Π²Π»Π΅ Π±ΡΠ΄ΡΡ ΡΡΠΎΠΈΡΡ ΠΏΡΠΎΡΠΈΠ»ΠΈΡΠΎΠ²Π°Π½Π½ΡΠ΅ ΠΈ ΡΠ°ΡΠΎΠ½Π½ΡΠ΅ Π½Π°Π»ΠΈΡΠ½ΠΈΠΊΠΈ ΠΈΠ· Π½Π°ΡΡΡΠ°Π»ΡΠ½ΠΎΠΉ Π΄ΡΠ΅Π²Π΅ΡΠΈΠ½Ρ, ΠΈΠ·Π³ΠΎΡΠΎΠ²Π»Π΅Π½Π½ΡΠ΅ Π½Π° ΡΡΠ°Π½ΠΊΠ΅.
ΠΠ° Π΄Π΅ΡΠ΅Π²ΡΠ½Π½ΡΠΌΠΈ Π½Π°Π»ΠΈΡΠ½ΠΈΠΊΠ°ΠΌΠΈ ΡΡΠ΅Π±ΡΠ΅ΡΡΡ ΡΡΠ°ΡΠ΅Π»ΡΠ½ΡΠΉ ΡΡ ΠΎΠ΄, ΡΠ°ΠΊ ΠΊΠ°ΠΊ Π΄Π»Ρ Π΄ΡΠ΅Π²Π΅ΡΠΈΠ½Ρ, ΠΏΡΠΈ ΠΈΡΠΏΠΎΠ»ΡΠ·ΠΎΠ²Π°Π½ΠΈΠΈ Π΅Π΅ Π² ΡΡΠ»ΠΎΠ²ΠΈΡΡ Π²ΠΎΠ·Π΄Π΅ΠΉΡΡΠ²ΠΈΡ Π²Π½Π΅ΡΠ½Π΅ΠΉ ΡΡΠ΅Π΄Ρ, ΡΠ²ΠΎΠΉΡΡΠ²Π΅Π½Π½Ρ Π½Π΅ΠΊΠΎΡΠΎΡΡΠ΅ Π½Π΅Π΄ΠΎΡΡΠ°ΡΠΊΠΈ:
- Π΄ΡΠ΅Π²Π΅ΡΠΈΠ½Π° ΠΌΠΎΠΆΠ΅Ρ Π΄Π΅ΡΠΎΡΠΌΠΈΡΠΎΠ²Π°ΡΡΡΡ ΠΏΡΠΈ Π²ΠΏΠΈΡΡΠ²Π°Π½ΠΈΠΈ Π²Π»Π°Π³ΠΈ ΠΈΠ»ΠΈ ΠΏΠΎΡΡΠ΅ΡΠΊΠ°ΡΡΡΡ Π² ΡΠ΅Π·ΡΠ»ΡΡΠ°ΡΠ΅ ΡΡΡΡΠΊΠΈ;
- ΡΠ°ΠΊΠ°Ρ ΠΎΠ±Π½Π°Π»ΠΈΡΠΊΠ° Π³Π°ΡΠΌΠΎΠ½ΠΈΡΠ½ΠΎ ΡΠΌΠΎΡΡΠΈΡΡΡ Π½Π° ΠΎΠΊΠ½Π°Ρ ΠΈΠ· Π΄Π΅ΡΠ΅Π²Π° ΠΈΠ»ΠΈ Π½Π° ΡΠ°ΡΠ°Π΄Π°Ρ ΠΈΠ· Π±ΡΡΡΠ°. ΠΠ° ΡΠΎΠ²ΡΠ΅ΠΌΠ΅Π½Π½ΡΡ ΡΠ°ΡΠ°Π΄Π°Ρ ΡΠ°ΠΊΠ°Ρ ΠΎΠ±Π½Π°Π»ΠΈΡΠΊΠ° Π±ΡΠ΄Π΅Ρ ΡΠΌΠΎΡΡΠ΅ΡΡΡΡ Π½Π΅Π»Π΅ΠΏΠΎ.
ΠΡΠ΅ΠΏΠ»Π΅Π½ΠΈΠ΅
Π§Π°ΡΠ΅ Π²ΡΠ΅Π³ΠΎ ΠΏΡΠΈ ΠΌΠΎΠ½ΡΠ°ΠΆΠ΅ Π½Π°Π»ΠΈΡΠ½ΠΈΠΊΠΎΠ² Π½Π° ΠΏΠ»Π°ΡΡΠΈΠΊΠΎΠ²ΠΎΠ΅ ΠΎΠΊΠ½ΠΎ ΠΈΡΠΏΠΎΠ»ΡΠ·ΡΡΡ ΠΌΠΎΠ½ΡΠ°ΠΆΠ½ΡΠ΅ ΡΠ»Π΅ΠΌΠ΅Π½ΡΡ, ΠΊΠΎΡΠΎΡΡΠ΅ Π·Π°ΠΊΡΠ΅ΠΏΠ»ΡΡΡ Π½Π° ΡΠ°ΠΌΠ΅ ΠΈΠ»ΠΈ ΡΡΠ΅Π½Π΅.
Π‘Ρ
Π΅ΠΌΠ° ΠΌΠΎΠ½ΡΠ°ΠΆΠ° Π½Π°Π»ΠΈΡΠ½ΠΈΠΊΠΎΠ²ΠΡΠΈΠΌΠ΅Π½Π΅Π½ΠΈΠ΅ ΡΡΠ΅ΠΌΠ½ΡΡ Π½Π°Π»ΠΈΡΠ½ΠΈΠΊΠΎΠ², ΠΊΠΎΡΠΎΡΡΠ΅ ΠΊΡΠ΅ΠΏΡΡΡΡ Π½Π° ΡΠΏΠ΅ΡΠΈΠ°Π»ΡΠ½ΡΠ΅ Π·Π°ΡΠ΅Π»ΠΊΠΈ, ΠΏΠΎΠ·Π²ΠΎΠ»ΡΠ΅Ρ ΠΏΡΠΎΠΈΠ·Π²ΠΎΠ΄ΠΈΡΡ Π±ΡΡΡΡΡΠΉ ΠΈ ΠΊΠ°ΡΠ΅ΡΡΠ²Π΅Π½Π½ΡΠΉ ΠΌΠΎΠ½ΡΠ°ΠΆ.
domzastroika.ru


















ΠΠ°ΠΊΠ°Π·ΡΠΈΠΊ ΠΌΠΎΠΆΠ΅Ρ Π²ΡΠ±ΡΠ°ΡΡ Π»ΡΠ±ΠΎΠΉ ΡΠ²Π΅Ρ ΠΎΡΠΊΠΎΡΠΎΠ² ΠΈΠ· ΠΊΠ°ΡΠ°Π»ΠΎΠ³Π° RAL

Π’Π΅ΠΊΡΡΡΡΠ½Π°Ρ ΡΡΡΠΊΠ°ΡΡΡΠΊΠ° ΡΠΎΠ·Π΄Π°Π΅Ρ Π·Π°ΡΠ°Π½Π΅Π΅ ΠΈΠ·Π²Π΅ΡΡΠ½ΡΠΉ ΡΠΈΡΡΠ½ΠΎΠΊ
Π‘ΡΡΡΠΊΡΡΡΠ½Π°Ρ ΡΡΡΠΊΠ°ΡΡΡΠΊΠ° ΡΠΎΠ·Π΄Π°Π΅Ρ Π½Π΅ΠΈΠ·Π²Π΅ΡΡΠ½ΡΠΉ ΡΠΈΡΡΠ½ΠΎΠΊ
ΠΠ΅Π½Π΅ΡΠΈΠ°Π½ΡΠΊΠ°Ρ ΡΡΡΠΊΠ°ΡΡΡΠΊΠ° ΡΠΎΠ·Π΄Π°Π΅Ρ Π³Π»Π°Π΄ΠΊΡΡ ΠΌΠ½ΠΎΠ³ΠΎΡΠ»ΠΎΠΉΠ½ΡΡ ΠΏΠΎΠ²Π΅ΡΡ
Π½ΠΎΡΡΡ
ΠΠ° ΠΏΠ΅ΡΠ²ΠΎΠΌ ΡΡΠ°ΠΏΠ΅ Π·Π°Π΄Π΅Π»ΡΠ²Π°ΡΡ ΡΡΠ΅ΡΠΈΠ½Ρ ΠΈ ΠΎΠ±Π΅ΡΠΏΡΠ»ΠΈΠ²Π°ΡΡ ΠΏΠΎΠ²Π΅ΡΡ
Π½ΠΎΡΡΡ
ΠΠΎΠ΄Π³ΠΎΡΠΎΠ²Π»Π΅Π½Π½ΡΡ ΠΏΠΎΠ²Π΅ΡΡ
Π½ΠΎΡΡΡ Π³ΡΡΠ½ΡΡΡΡ ΠΈ Π²ΡΡΠ°Π²Π½ΠΈΠ²Π°ΡΡ
ΠΠΎΡΠ»Π΅ Π²ΡΡΠ°Π²Π½ΠΈΠ²Π°Π½ΠΈΡ ΠΎΡΠΊΠΎΡΠ° ΠΏΠΎΠ²Π΅ΡΡ
Π½ΠΎΡΡΡ Π·Π°ΡΠΈΡΠ°ΡΡ ΠΈ ΠΏΠΎΠ²ΡΠΎΡΠ½ΠΎ Π³ΡΡΠ½ΡΡΡΡ
ΠΠ° Π·Π°ΠΊΠ»ΡΡΠΈΡΠ΅Π»ΡΠ½ΠΎΠΌ ΡΡΠ°ΠΏΠ΅ Π²ΡΠΏΠΎΠ»Π½ΡΡΡ Π΄Π΅ΠΊΠΎΡΠ°ΡΠΈΠ²Π½ΡΡ ΠΎΡΠ΄Π΅Π»ΠΊΡ ΠΎΡΠΊΠΎΡΠ°
Π£Π΄Π°Π»Π΅Π½ΠΈΠ΅ ΠΎΡΡΠ°ΡΠΊΠΎΠ² ΠΏΠ΅Π½Ρ
ΠΠΎΠΊΠΎΠ²ΡΠ΅ ΡΡΠΎΡΠΎΠ½Ρ Π·Π°ΠΌΠ΅ΡΡΡΡ ΡΠ½Π°ΡΡΠΆΠΈ ΠΈ Π²Π½ΡΡΡΠΈ
ΠΠ°Π½ΡΠ΅Π»ΡΡΡΠΊΠΈΠΌ Π½ΠΎΠΆΠΎΠΌ Π²ΡΡΠ΅Π·Π°ΡΡ Π»ΠΈΡΡΡ ΠΏΠΎ Π·Π°ΠΌΠ΅ΡΠ°ΠΌ
ΠΡΡΠ°Π²Π½ΠΈΠ²Π°ΡΡ ΠΏΠΎΠ²Π΅ΡΡ
Π½ΠΎΡΡΡ ΠΎΡΠΊΠΎΡΠ°
ΠΠ°Π½ΠΎΡΡΡ Π½Π° ΠΏΠ°Π½Π΅Π»Ρ ΡΠ»ΠΎΠΉ ΠΏΠ΅Π½Ρ
ΠΠ΅ΡΠ°Π»Ρ ΠΏΡΠΈΠΊΠ»Π°Π΄ΡΠ²Π°ΡΡ ΠΊ ΠΎΡΠΊΠΎΡΡ Π½Π° Π½Π΅ΠΊΠΎΡΠΎΡΠΎΠ΅ Π²ΡΠ΅ΠΌΡ
ΠΠ»Ρ ΡΠΈΠΊΡΠ°ΡΠΈΠΈ Π³ΠΈΠΏΡΠΎΠΊΠ°ΡΡΠΎΠ½Π° ΠΈΡΠΏΠΎΠ»ΡΠ·ΡΡΡ ΠΌΠ°Π»ΡΡΠ½ΡΠΉ ΡΠΊΠΎΡΡ
Π‘ΠΏΡΡΡΡ ΡΡΡΠΊΠΈ Π½Π΅ΠΎΠ±Ρ
ΠΎΠ΄ΠΈΠΌΠΎ Π·Π°ΡΠΏΠ°ΠΊΠ»Π΅Π²Π°ΡΡ ΡΡΡΠΊΠΈ
Π£Π³Π»Ρ Π·Π°ΠΊΡΡΠ²Π°ΡΡ Π΄Π΅ΠΊΠΎΡΠ°ΡΠΈΠ²Π½ΡΠΌ ΡΠ³ΠΎΠ»ΠΊΠΎΠΌ
ΠΠ»Ρ ΡΠ΄Π°Π»Π΅Π½ΠΈΡ ΠΎΡΡΠ°ΡΠΊΠΎΠ² ΠΏΠ΅Π½Ρ ΠΈΡΠΏΠΎΠ»ΡΠ·ΡΡΡ ΠΊΠ°Π½ΡΠ΅Π»ΡΡΡΠΊΠΈΠΉ ΠΈΠ»ΠΈ ΡΡΡΠΎΠΈΡΠ΅Π»ΡΠ½ΡΠΉ Π½ΠΎΠΆ
ΠΠ°ΠΊΡΠ΅ΠΏΠ»ΡΡΡ Π΄Π΅ΡΠ΅Π²ΡΠ½Π½ΡΠΉ Π±ΡΡΡΠΎΠΊ ΠΏΠΎ ΠΏΠ΅ΡΠΈΠΌΠ΅ΡΡΡ ΡΠ°ΠΌΡ
Π Π±ΡΡΡΠΊΡ ΠΏΡΠΈΠΊΡΠ΅ΠΏΠ»ΡΡΡ ΡΡΠ°ΡΡΠΎΠ²ΡΠΉ ΠΏΡΠΎΡΠΈΠ»Ρ
Π Π΅ΠΉΠΊΠ° Π·Π°ΠΊΡΠ΅ΠΏΠ»ΡΠ΅ΡΡΡ ΠΏΠΎ Π½Π°ΡΡΠΆΠ½ΠΎΠΌΡ ΠΏΠ΅ΡΠΈΠΌΠ΅ΡΡΡ ΡΠ°ΠΌΡ
ΠΠΎΠΊΠΎΠ²ΡΠ΅ ΠΏΠ°Π½Π΅Π»ΠΈ ΡΡΡΠ°Π½Π°Π²Π»ΠΈΠ²Π°ΡΡ ΠΏΠ΅ΡΠ²ΡΠΌΠΈ
ΠΠ΅ΠΆΠ΄Ρ Π²Π΅ΡΡ
Π½ΠΈΠΌ ΠΎΡΠΊΠΎΡΠΎΠΌ ΠΈ ΠΏΠ°Π½Π΅Π»ΡΡ ΠΠΠ₯ Π·Π°Π΄ΡΠ²Π°ΡΡ Π½Π΅Π±ΠΎΠ»ΡΡΠΎΠΉ ΡΠ»ΠΎΠΉ ΠΏΠ΅Π½Ρ
Π£Π³Π»Ρ Π·Π°ΠΊΡΡΠ²Π°ΡΡ Π½Π°Π»ΠΈΡΠ½ΠΈΠΊΠ°ΠΌΠΈ