На какой высоте вешать верхние кухонные шкафы: На какой высоте вешать кухонные шкафы, как не допустить типичных ошибок
На какой высоте вешать кухонные шкафы, как не допустить типичных ошибок
На кухне используются встроенные в стену ниши, стеллажи, напольные и навесные шкафы, служащие местом хранения для продуктов, мелкой бытовой техники, обеденных и чайных сервизов, кухонного текстиля. Где их хранить и как расставить – каждая хозяйка решает сама. То же касается и расстановки мебели. Но все равно мы задаемся вопросом, на какой высоте вешать кухонные шкафы, чтобы они не мешали нам, заставляя запрокидывать голову и, в то же время, было удобно доставать что-либо.
Монтажные рейки помогут правильно распределить нагрузку на стену.
Стандартом принято считать расстояние в 50-56 см между нижним напольным и верхним настенным шкафом. Оправдано ли это? Скорее всего, нет. Самое важное правило – первая полочка навесного шкафа должна находиться на уровне глаз – ведь то, что мы чаще всего используем, лежит именно на ней – от специй и тарелок до кухонных приборов и продуктов. Далее уровень шкафчика зависит от его высоты – сколько в нем всего полок: две, три или все четыре.
Удобство – важный этап в размещении кухонных шкафов
Уровень навесных шкафов должен определяться не какими-то стандартами и общепринятыми параметрами, а ростом хозяйки домашнего очага. Второй момент, который нужно учитывать – это высота и глубина напольного шкафчика и столешницы. Чем они шире, тем меньшим должно быть расстояние от столешницы до навесного шкафа, поскольку хозяйке придется тянуться к дверце.
На какой высоте вешаются кухонные шкафы? Есть стандарт, он равен 50 см. Но откуда он взялся? Конечно, проще доставать посуду или продукты, если шкаф почти стоит на столешнице. Но удобно ли? Для этого существует длинный пенал.
Рекомендуемая высота размещения шкафов
Зазор в 50 см – это та высота, позволяющая не только расставить в рабочей зоне кухонный комбайн, мультиварку, соковыжималку, электрочайник, кофеварку и прочую технику, но и пользоваться ею с комфортом (вам же придется открывать тот же чайник или мультиварку). К тому же это убережет дно верхнего шкафа от порчи – горячий пар может испортить мебель, если та висит слишком низко.
Прежде чем решить, на какой высоте вешать кухонные шкафы, тщательно все продумайте. Перед вами стоит непростая задача.
- Хозяйка в первую очередь должна без всяких табуреток доставать до полок в шкафу и их содержимого (это в идеале).
- Во-вторых, шкафы не должны заслонять вентиляцию. Хорошо бы, чтобы и трубы шли не сквозь шкафы, а выше.
- В-третьих, он не должны портить интерьер кухни. Вы удивитесь, но погрешность в 10-20 см может свести на нет усилия дизайнера, поэтому расположением верхних отделов лучше заниматься вдвоем – один держит, другой смотрит и оценивает.
- Ну, и наконец, крепить монтажную планку или вбивать крючки нужно надежно, чтобы мебель под тяжестью наполнителя не рухнула вниз на голову хозяйки или трапезничающей семьи.
Рекомендуемая высота размещения шкафов
И все же, какую высоту выбрать? Интернет-ресурсы, мебельщики, сборщики мебели утверждают, что расчет уровня нижнего края навесного шкафа ведется так: высота основания + высота напольного шкафа + 50-56 см (см.
так же «Размеры кухонных шкафов: выбираем оптимальный размер»).
А что делать, если шкаф планируется только на стене. В любом случае определяющим параметром будет служить рост хозяйки кухни – ей должно быть не сложно дотягиваться к шкафу, даже к самой верхней полки. Так, для миниатюрных дам ростом до 160 см высота шкафа над уровнем пола будет максимум 165-175 см. Если ваш рост от 160 см до 175 см – то шкаф вешается на расстоянии 185 см, для высоких хозяев (от 175 см и выше) – 200 см. И имеется ввиду уровень верха в настенном шкафу. Если брать во внимание нижнюю границу навесной мебели, то она должна располагаться на высоте 140 см, 150 см и 160 см соответственно.
Минимальная высота размещения над кухонной плитой
Заметна тенденция, что высота шкафа равна росту человека + 20-25 см. Это и есть оптимальный параметр. Конечно, если шкаф очень высокий (так требует интерьер кухни), то так или иначе придется пользоваться подставками или табуреткой, чтобы достать необходимое с верхней полки.
Тогда рассчитываем высоту по нормативам ГОСТа.
Иногда шкафы намеренно вешают очень высоко, даже выше холодильника. Это удобно в том случае, если нужно освободить площадь кухни. Тогда на самом верху можно хранить те кухонные гаджеты, посуду и инвентарь, которыми хозяйка пользуется очень редко. К примеру, безвкусная ваза, подаренная свекровью, прекрасно уместится в таком шкафу наряду с многочисленными пепельницами, селедочницами и прочей утварью.
Подробней про навесные шкафы для кухни читайте в статье «Навесные шкафы для кухни».
Вешаем шкаф
С высотой более или менее определились. Теперь нужно повесить шкафы так, чтобы это было ровно, надежно и не портило стену – мало ли, вдруг вам захочется поменять интерьер кухни. Итак, делаем все поэтапно.
Монтажную рейку нужно крепить на дюбель-гвозди
Способ 1
- Замеряем высоту верхнего шкафа – ваш рост плюс 20-25 см и отмечаем карандашом. С помощью уровня рисуем горизонтальную линию для ориентира.

- Отмечаем место, где будем сверлить отверстие под крепеж: саморез, крючок. Вторую наметку сделаем позже.
- Просверливаем и вставляем крепеж – сделать это надо очень тщательно.
- Поворачиваем шкаф к себе спинкой и прикручиваем петли к задней стенке.
- Теперь понадобится помощь одного из членов семьи. Навешиваем шкаф на единственный пока крепеж, выравниваем его, помогая себе правилом, и намечаем, где будет отверстие для второго крепежа.
- Просверливаем и вставляем второй крепеж.
Если шкаф не один, а несколько, проделайте все шаги для каждого из них. Следите, чтобы все висели на одном уровне – для того вы и прочертили горизонтальную линию.
Крепление на дюбель-гвозди
Второй совет касается скрепления шкафов между собой. Делают это и из эстетических соображений (чтобы они не расходились), и для пущей надежности.
- Теперь вешаем шкафы, монтируем верхний карниз, проверяем работу подсветки, если она есть.
- Вставляем полки и устанавливаем дверцы.
Если есть перекос, подтягиваем или ослабляем регулировочные винты.
Способ 2
Чтобы не ковырять море отверстий в стене, можно сделать все несколько иначе. Прикрепить к стене монтажную рейку и уже на нее повесить шкафы.
Металлическая монтажная рейка
Сначала нужно выровнять стену, хотя предполагаем, что после ремонта они и так идеально ровная.
- Подключаем светильники и розетки (сколько их должно быть и где, читайте в статье «Расположение розеток на кухне»).
- Вы уже знаете, на какой высоте вешают кухонные шкафы. Сделайте пометку на стене, где будет крепеж. Заодно и сам “отпечаток” шкафа можно нарисовать.
- Делаем отверстия и крепим монтажную рейку.
- С обратной стороны шкафа крепим петли и крючки.
- Проверяем, висят ли они строго горизонтально.
- Навешиваем шкафы на крепежную планку.
- Шкафы между собой нужно стянуть, для этого в боковых стенках насквозь просверливаем отверстия. Чтобы на стенках не образовывались трещины и сколы, просверлите сначала узкое отверстие, а затем расширьте его.
Второй вариант – плотно прижать брусок к стенке шкафа там, где будет выходить сверло. Теперь можно стянуть шкафы и приступать к следующему пункту. - Вставляем полки.
- Крепим дверцы.
- Проверяем, плотно ли они закрываются. При необходимости регулируем болты.
Крепление шкафов на специальный навес
При этом способе шкафы можно передвигать по рейке, как по рельсам. Однако и стоит такая конструкция значительно дороже простых шурупов, крючков и петель. Зато не нужно мудровать с разметкой, нанимать помощника. Шкафы можно двигать как по вертикали, так и по горизонтали благодаря крутящимся винтам и таким образом их выровнять. Если шкаф очень тяжелый, можно упрочить конструкцию, разбив рейку на части и прикрепив каждую на 3 винта.
Примерно так крепится шкаф на монтажную рейку.
Есть у способа с монтажной рейкой и минусы. Между стеной и шкафом будем небольшой отступ. Поэтому по низу шкафа с задней стороны нужно прибить рейку такой же толщины либо же вешать шкаф так, чтобы нижний край находил на кухонный фартук.![]()
Важные советы
- Шкафы с посудой становятся довольно тяжелыми. А если мебель у вас еще и деревянная, то и подавно. Крепежные материалы нужно выбирать максимально качественные, чтобы мебель не упала вниз.
- В отверстия вставьте не дюбеля и не деревянные чопики, а анкерные болты – на сегодняшний день они наиболее прочные.
- Чтобы выровнять стену, понадобился толстый слой штукатурки? Нужно монтировать шину, тогда конструкции обретет надежность.
- Не вешайте шкафы на стены из гипсокартона – они просто не выдержат.
- Перед покупкой нового кухонного гарнитура заранее замерьте не только длину стен, но и высоту потолков. Нет гарантии, что шкафы идеально впишутся в вашу кухню.
- Учитывайте ширину нижней тумбы или столешницы – вам должно быть удобно открыть дверцу настенного шкафа и быстро что-то достать, не пользуясь табуреткой, подставкой или высоким ростом супруга.
- Важно не забыть и о расстоянии между тумбой и настенным шкафом. Между ними должно поместиться еще много всякой кухонной утвари от тарелок до бытовой техники.
Да и готовить, мыть посуду, согласитесь, не комфортно, если лбом все время упираетесь в шкаф. Выход – глубина нижней тумбы больше, нежели верхней. - Прежде чем сверлить отверстия для монтажной планки, крючков или иного крепежа, убедитесь, что именно на этой высоте не проложена проводка. Известны случаи, когда одним легким нажатием на курок дрели была обесточена вся квартира.
Некачественный монтаж шкафов на кухне может повлечь подобные последствия.
Теперь вы знаете, как определить высоту крепления шкафов. Ее можно определить, исходя из стандартов, требований кухни или собственного роста. Главное, что это нравилось вам.
На какой высоте нужно вешать кухонные шкафы?
Кухонный гарнитурСложно представить себе полноценную кухню без шкафчиков.
С их помощью можно разместить все самое необходимое. Оттого, насколько правильно они размещены, кухонное пространство может стать удобнее или сложнее в эксплуатации. Чтобы оно стало все же более комфортным, есть ряд рекомендаций по размещению нижних и верхних шкафов. С таким грамотным планированием можно избежать множества неудобств.
Основные правила и стандарты
Для правильного размещения мебели на кухонном пространстве есть специальные стандарты и правила. Следуя им, можно без лишних проблем удобно разместить кухонные шкафы и другие предметы мебели в пределах кухни. Так, согласно госстандарту, нужно вешать шкафы так, чтобы их нижний край располагался на уровне 135-140 см над напольным ярусом. Что касается нижних тумб, то их высота должна быть сбалансирована с ростом владельцев. Чаще всего данный параметр составляет около 90 см.
Между столешницей напольных шкафов и навесными шкафами расстояние должно составлять не менее 45-50 см.
Рабочая зона кухонного пространства по стандартам должна иметь расстояние от 45 до 60 см. На таком участке должно оставаться достаточно места под различные бытовые приборы.
Не стоит оставлять слишком маленький запас, иначе человек будет биться головой при некоторых действиях. Если рост человека несколько выше среднего, то лучше сделать расстояние более 60 см.
Стоит отметить, что при слишком больших особенностях роста, например, очень низкий или высокий, кухонную мебель следует выбирать индивидуально под себя, как и расстояние между ней.
Расстояние от пола
Нижняя кромка шкафчиков располагается, согласно универсальному правилу, ниже, чем уровень плеча на 6 см.
Конечно, хорошо, если сразу учесть средний показатель для всех взрослых, которые будут хозяйничать на кухне.
При отсутствии нижнего яруса шкафов будет удобно, если нижняя кромка подвесных предметов мебели будет располагаться на высоте 135 см. Это дает возможность спокойно доставать все необходимое даже с верхних полок. К примеру, человеку ростом в 165 см будет удобно повесить шкаф на высоту 130-190 см. В том случае, если предполагается постоянное использование стула или специальной маленькой лесенки, то можно размещать шкафчики на уровне 190-240 см.
Важно учесть, что шкафы должны висеть так, чтобы видимость была оптимальной и самой лучшей. Для рассмотренного в примере роста это будет отметка на высоте 140 и 165 см. В данном случае разделителем между ограниченной зоной и зоной самой меньшей доступности станет высота, равная 180 см.
Верхняя граница
Верхний уровень навесных шкафчиков сильно зависит от высоты потолков в зоне кухни.
Как правило, чем более высокий потолок, тем более широкий фартук делается, следовательно, шкафы размещаются выше. Конечно, следует учитывать, что шкафы под потолком обладают рядом недостатков.
- Сложная реализация монтажа. Далеко не все потолки и параметры мебели позволяют размещать шкафы на самой большой высоте.
- При высоте потолков от 2,5 метра доступ к наиболее верхним полочкам может быть затруднительным.
- Более высокая стоимость.
При всех этих недостатках хозяйки очень часто отдают предпочтение верхним подвесным шкафам, так как они приносят практичность в любое кухонное пространство. На любой кухне есть такие предметы, которыми пользуются редко, но все-таки пользуются. Именно их нередко и отправляют на полки, к которым сложнее всего добраться.
К тому же такие шкафы любят за то, что они позволяют убрать множество лишних вещей с глаз.
Оформлять стены при помощи шкафов на них – сплошное удовольствие. Особенно если учесть разнообразие цветов их фасадов. Можно даже сделать потолки визуально выше, если правильно подобрать навесные шкафы. Однако стоит помнить, что до полок на уровне менее 2,1 метра добираться значительно проще.
При выборе верхней границы проще всего опираться на расстояние между столешницей и подвесным шкафом. А также оно еще зависит от высоты самих секций. Даже высокие люди не слишком жалуют шкафы, которые слишком высоко повешены, так как они неудобны в эксплуатации.
Рекомендуется перед тем, как покупать мебель, отметить на стене максимально предельное верхнее положение шкафа. Согласно стандартам, оно делается на 19-20 см больше, чем средний или самый высокий показатель роста взрослых людей.
Идеальная высота верхнего уровня шкафа не имеет зависимости от правила треугольника или формы кухонного пространства.
Что учитывать при выборе высоты?
При выборе высоты для навесных шкафов на кухне стоит учитывать множество факторов. Однако если сделать все правильно, то кухонное пространство будет удобным и практичным. Перед монтажом и подбором высоты стоит учесть:
- рост того, кто больше других проводит времени на кухне, а в идеале – всей семьи;
- наличие свободного пространства под шкафами;
- другие предметы кухонной мебели и их конфигурацию, размеры.
Довольно часто пространство под висящими шкафами не остается пустовать. Его занимают или предметами мебели, или какими-либо бытовыми приборами. Конечно, чаще всего под ними размещают столешницу, и с этим надо считаться.
Ведь на ней будут располагаться оборудование и посуда, поэтому стоит сделать так, чтобы нижняя граница шкафа не мешала нормальной работе.
Слишком высокий уровень подвесных шкафов также может быть неудобным, так как он должен быть легкодоступным.
Рост человека
Основной фактор при выборе высоты подвесных шкафов – человеческий рост. Ведь оттого, насколько удобно работать на кухне, зависит не только комфорт, но и качество готовой еды. Чем проще работается на кухне, тем больше будет желания готовить. Многие хозяйки не любят процесс готовки только за то, что им приходится много наклоняться, взбираться на табуретки, уклоняться от раскрываемых дверок. В итоге возможность получения травм возрастает, а вот желание готовить – наоборот.
По мнению экспертов, для человека ростом 175 см нижняя граница шкафа должна располагаться на высоте 150-155 см от пола.
Для хозяек ростом более 175 см данный показатель должен составлять 160 см, а при росте более 185 см уместно размещение на уровне 165-170 см от пола.
Важно при этом учитывать и высоту навесного шкафа. Лучше всего, если высота верхней полки будет находиться на расстоянии, равном росту человека плюс 20 см. Что касается нижней полки, то ее лучше всего размещать на уровне глаз.
Средний рост всех членов семьи целесообразно учитывать, если на кухне готовят периодически каждый из них. Если готовит кто-то один, то достаточно за основу отсчета взять его рост. Для людей среднего роста оптимальным является расположение навесной мебели на высоте 140-150 см.
При выборе высоты, на которой будут монтироваться шкафы, лучше всего придерживаться пары несложных правил:
- высота, на которой находятся подвесные кухонные шкафы, должна позволять хозяйке без подставок и лишних усилий дотягиваться до верхней полки;
- высоту для навесных шкафов на кухню стоит подбирать так, чтобы встав с ними рядом, хозяйка могла видеть, не поднимая головы, предметы, стоящие, на верхней полке.

Габариты мебели
Чтобы избежать многих проблем, стоит выбирать стандартный гарнитур. Так, типовые размеры навесных шкафов для кухонного пространства выглядят следующим образом:
- высота варьируется от 35 до 70 см;
- глубина составляет от 25 до 45 см;
- ширина находится в диапазоне от 15 до 80 см.
Как правило, стандартный показатель высоты нижнего яруса достигает 90 см. В него входят высота цоколя и каркаса, а также толщина столешницы. Что касается глубины нижних шкафов, то она в среднем составляет 60 см (плюс-минус 10 см). Допускается, чтобы рабочая поверхность столешницы выступала за край тумбы примерно на 4 см.
Для подбора нижней границы, на которой будет располагаться навесная конструкция, важно учитывать все вышеперечисленные параметры.
Стоит заметить, что верхние шкафчики выравниваются в одну линию по верхнему уровню, вне зависимости от величины их высоты.
Нижняя полка шкафов должна располагаться на высоте 85 см над столешницей. Для шкафов высотой от 70 см выбирают расстояние от нижней кромки до рабочей поверхности, равное 60 см. Что касается второй и третьей полок в навесных шкафах, то они должны располагаться на наиболее подходящей и наибольшей высоте соответственно.
Зависимость от вытяжки и плиты
Устанавливать над плитой навесные шкафы нельзя. Однако их вполне можно монтировать над вытяжкой. Причем данное решение для многих интерьеров успело стать классикой.
При монтаже расстояние от варочной поверхности до шкафов должно составлять не менее 60-65 см. Вряд ли в данном случае удастся установить шкафчики на уровне соседних секций. Однако надо еще учесть, что встречаются материалы, которые при нагревании способны выделять опасные вещества, как, например, ДСП. На расстоянии 75 см от газовой плиты и 65 см от электрической рекомендуется устанавливать вытяжку, а уже над ней крепятся навесные шкафы. Термовытяжка даже имеет специальные варианты форм для более удобного размещения предметов кухонной мебели.
Нестандартное размещение
Нестандартные кухонные пространства требуют таких же нестандартных решений. Нередко в них приходится размещать навесные шкафы оригинальными методами. Иногда это может быть размещение в нишах, хитрый обход труб или соседство с котлом. Стоит заметить, что и шкафчики в таких случаях выбираются не стандартные, а под заказ.
В последнее время среди наиболее нестандартных решений для монтажа подвесных шкафов стал набирать популярность вариант крепления на потолок. В этом случае создается ощущение, что предметы мебели парят в воздухе. Особенно эффектно это смотрится в комплекте с кухонными островками.
Еще один тренд в новом сезоне – размещение гарнитура на разных уровнях. Причем это касается не только навесных шкафов, но и напольных тумб. Однако такое решения является не только оригинальным, но еще и практичным, так как позволяет распределить нагрузку на позвоночник.
О том, на какой высоте нужно вешать кухонные шкафы, смотрите в следующем видео.
расстояние между столешницей и верхними шкафами
Высота потолков
При низких потолках (например, 270 см) откажитесь от покупки высокого гарнитура. Минимальное расстояние между ними и рабочей поверхностью не даст жильцам легко дотянуться до верхних полок. Здесь шкафы средней высоты – универсальное и оптимальное решение. В советское время большая часть кухонных наборов делалась «под копирку». Сегодня же можно заказать гарнитур «под себя». Ростовка выпускаемых в сборе кухонных принадлежностей задаётся таблицей значений по ГОСТу. Здесь заранее определены число тумб и размеры каждой из них, рекомендации по расположению кухонных принадлежностей и посуды, эргономические требования.
Правила расположения шкафов
Кухонный гарнитур в большинстве случаев имеет обычные размеры. Столешница находится на высоте 85 см от пола. Расстояние от рабочей поверхности стола до нижней полки навесного шкафчика – минимум 45 см, оптимальный вариант – 60 см.
Какую мебель подвешивают на стену:
- угловой открытый или закрытый шкафчик треугольной формы;
- шкафы для продуктов, посуды, баночек с крупами и специями;
- модули с открытыми полками;
- шкафчик для сушки посуды.
Навесная мебель крепится на высоту, которая подходит под рост хозяина или хозяйки. Если установить её выше, придётся каждый раз вставать на стул. Мебель для кухни состоит из нескольких модулей. У шкафов может быть разная ширина, высота практически всегда одинаковая. Подробнее
У некоторых шкафчиков может быть сверху козырёк. На самый верх можно поставить комнатные растения или лёгкие предметы декора. Навесные шкафы лучше не крепить над плитой. Обычно над плиткой устанавливается вытяжка. Все подвешенные шкафчики должны находиться на одном уровне.
Это тоже может быть интересно! Как сделать угловой кухонный шкаф на кухню своими руками с чертежами и схемами
Навесная мебель должна иметь крепкие полки, которые способны выдержать 15 кг веса. Наполняют шкафы посудой, продуктами и кухонной утварью так, чтобы тяжёлые предметы находились в напольных модулях, лёгкие – в подвешенных на стену конструкциях.
Отдельные кухонные модули должны располагаться на кухне так, чтобы ими было удобно пользоваться. Посудомоечная машина устанавливается около мойки. Рядом с плитой не ставят выдвижные ящики. Духовку лучше совмещать с плиткой. Варочная плита не должна находиться возле холодильника или окна. Столешница располагается возле раковины. Перед открывающимися дверками или выдвижными ящиками должно быть свободное пространство (минимум – 75 см). Розетки обычно находятся на высоте 1 м от пола.
Как правильно осуществить подбор величины шкафов
Стандарт величин шкафов для кухни потому и стандарт, что рассчитывался на использование в типовых кухнях. Однако, к сожалению, помещения в наших новостройках возведены вовсе не под линейку, соответственно, даже называясь типовыми, они могут иметь несколько отличные параметры. Получается, что и шкафы нужно выбирать, основываясь на этом риске. Но лучше не рисковать, а просто подготовиться, совершив предварительные замеры кухни.
Параметры кухонного гарнитура, даже усредненные, могут не подойти для вашей, казалось бы, типовой кухни
Итак, гарнитур должен максимально точно встраиваться в комнату. Если будет устанавливаться, например, кухонная колонка, то пенал для нее нужно встроить так, чтобы он:
- не загромоздил помещение;
- вписался в высоту.
Разумеется, если мебель подбирается для кухни, которая оформлена в стиле лофт, то, вероятнее всего, можно так сильно не заморачиваться, так как лофт вообще не подразумевает наличия маленьких помещений. Однако, для всех остальных кухонь мебельные изделия подобрать не так просто.
Кухня в стиле лофт
Определение высоты
Итак, оптимальная высота шкафов от пола должна составлять от 180 до 250 сантиметров. При этом, высота шкафов, располагающихся внизу, должна подбираться исходя из роста использующих ее людей. Так, в среднем она будет составлять около 85 сантиметров. Поэтому, выбирая конкретный шкаф, постарайтесь сразу же оценить габариты изделий. Они должны в обязательном порядке соответствовать вашему росту.
Эргономика на кухне
То же следует сделать и для верхних шкафов. Представьте, что вы повесили их слишком высоко, в то время как ваш рост, так скажем, невелик. В итоге вам будет очень неудобно доставать посуду и другой кухонный китч с верхних, а порой и нижних полок.
Между столешницей нижнего ряда шкафов, а также нижними торцевыми частями верхнего ряда не должно быть расстояния, превышающего промежуток в 45 или 50 сантиметров.
Если не угадать с некоторыми размерами, то вам самим же впоследствии будет неудобно готовить на собственной кухне и в принципе там находиться
Общая же высота кухонных шкафов от пола до потолка не должна превышать 250 сантиметров, так как в этом случае интересующие нас предметы мебели просто-напросто не войдут хоть в типовую, хоть не в типовую кухню, за тем лишь, наверное, исключением, когда речь идет об оформлении пространства в отдельно стоящем жилом объекте.
Определение глубины
Такой показатель, как глубина шкафчиков, является весьма важным, так как именно он обеспечивает полноценное и максимально комфортное хранение необходимых вам на кухне предметов, например, комплектов посуды, и прочей же утвари. Так, стандартную величину в 20-40 сантиметров рекомендуется увеличивать, например, до 50.
Сегодня довольно просто сделать мебель на заказ, поэтому, вы можете отойти от стандартизированных норм в пользу менее тривиальных решений
Впрочем, если вы захотите, сможете оформить и шкафчики большей глубины, единственное, в этом случае нужно следить за тем, чтобы они не загромождали комнату.
Определение ширины
Стандартные показатели ширины кухонных шкафов могут варьироваться в виду наличия определенной разницы между этими конструкциями.
Таблица 4. Ширина шкафов различной конструкции
| Описание конструкции | Параметры |
|---|---|
| Одностворчатые шкафчики | Такой показатель одностворчатого типа конструкций, как ширина в норме составляет от 30 до 50 сантиметров |
| Двухстворчатые шкафчики | Для шкафов, имеющих по две створки, интересующий нас показатель будет составлять примерно от 60 до 100 сантиметров |
| Угловые конструкции | Шкафы углового типа, как правило, производятся сами по себе шириной от 90 сантиметров. При этом, однако, ширина их фасадов рассчитывается согласно формуле равнобедренных треугольников, которую мы знаем еще со времен изучения геометрии в школе. Так, в нашем случае она будет равна 130 сантиметра. |
| Ширина верхних шкафов | То, какой шириной будут характеризоваться верхние шкафчики, напрямую зависит от аналогичного показателя для нижних шкафчиков. Так в среднем данный показатель составляет от 30 до 100 сантиметров. |
| Фасады верхних угловых конструкций | Такой показатель, как ширина, рассчитывающийся для верхних угловых шкафов, будет составлять около 85 сантиметров. |
Правила эргономики кухни
Рациональное размещение навесных шкафов
Необходимо сразу определиться, чем вы будете руководствоваться при решении вопроса, на какой высоте вешать кухонные шкафы: нормой или удобством.
Если первым, то здесь все просто. По нормативам навесные шкафы должны располагаться на высоте 0,45 – 0,55 м от рабочей поверхности стоячих шкафов. Это расстояние рассчитано из соображений удобства при расположении и работе с кухонными бытовыми приборами.
Пятидесяти сантиметров достаточно для того, чтобы, например, расположить на столе кухонный комбайн или мультиварку, и беспрепятственно пользоваться ею: открывать и закрывать крышку, погружать в нее продукты и т.д. Кроме того, пар из работающих электроприборов (чайника, мультиварки, пароварки и т.п.) не будет повреждать покрытие навесных шкафчиков.
Вроде бы все рассчитано правильно, но не учтен один момент: рост хозяйки кухни. Ведь та высота, которая удобна для невысокой хозяйки, абсолютно неприемлема для женщины высокого роста. А потому в этом случае следует руководствоваться принципами удобства и комфорта. Исходя из них, навесные ящики необходимо размещать таким образом, чтобы нижняя полка располагалась на уровне глаз хозяйки.
Именно на ней принято хранить то, что должно быть под рукой, а потому доступ к этим вещам должен быть элементарным. В идеале, доступ к вышерасположенным полкам также должен быть удобным, без использования каких-либо дополнительных предметов: стульев, табуреток, подставок и т.д. Но это в идеале.
На деле, на маленьких кухнях в целях рационализации кухонного пространства обустраивают подвесные полки под потолок, чтобы вместить в них максимально возможное количество предметов. В данном случае абсолютно невозможно сделать комфортным доступ ко всем полкам, но максимально приблизиться к этому – основная задача дизайнеров.
Каких размеров бывают кухонные шкафы?
Есть определенная закономерность расчета длин, высот, ширин, габаритов в мебельном производстве. Наблюдательные уже наверняка заметили привязку к числам 16 и 32. К последнему даже в большей степени: начнем с того, что у присадочного (сверлильного) станка расстояние между центрами соседних шпинделей равно именно 32 мм. С числами, кратными 32, мебельщик сталкивается постоянно: при разметке и установке направляющих, петель, ручек (база ручек, то есть расстояние между винтами может составлять 32, 64, 96, 128, … 256 и т.д.), другой фурнитуры, включая подъемные механизмы и различные системы хранения. Этим объясняются общепринятые стандарты кухонной мебели, используемых для оснащения коробов, ящиков комплектующих, систем хранения, разноплановых механизмов.
Совпадение или нет, но для габаритов шкафов, фасадов стандарты кухонной мебели по высоте также кратны 16 мм. За базовую величину берется модуль 720 мм. С учетом технологического зазора, для стандартных фасадов высота составляет 716 мм. Производители готовых кухонных фасадов предлагают объемные линейки для модулей:
- Высотой 720 и шириной 150, 200, 300, 400, 500, 600 мм. Нередко встречаются размеры, кратные 50: 250, 350, 450 мм. Узкие модули (150 и 200) рассчитаны под бутылочницы.
- Высотой 900-960 мм и шириной 300, 400, 500 мм.
- Высотой 480, 600 мм и шириной 500, 600 мм.
- Для ящиков высотой 120, 140, 180, 300, 360 мм и шириной 300-800 мм.
Более наглядно типовые стандарты кухонной мебели, размеры шкафов и столов-тумб представлены на чертеже.Стандартная высота кухонных модулей
Производители кухонных фасадов зачастую не ограничиваются выпуском только стандартной линейки. Под заказ можно изготовить дверцы на новую кухню любого размера, без каких-либо стандартов – единственное, что это будет дороже стоить и дольше выполняться.
Размеры
Высоту, которая должна отделять верхние шкафы для кухни от нижних, следует выбирать с учетом роста хозяев и размеров бытовой техники. Хорошо, если шкафы будут иметь оптимальное количество и размер полок. Это позволит хранить в них приличный объем припасов продовольствия. Вешают шкафы таким образом, чтобы хозяйка или хозяин могли бы без проблем достать нужный им предмет.
В навесных шкафах крайне редко размещают крупногабаритную бытовую технику, поэтому их величина может быть различной. Размеры верхних кухонных шкафов может быть от 15 до 90 см. Чаще всего это зависит от ширины нижних шкафов для кухни. Желательно, чтобы верхние и нижние шкафы мели одинаковую ширину.
Высоту верхних шкафчиков следует подбирать с учетом не только роста обитателей кухни, но и опираясь на высоту потолков. В кухне с высокими потолками можно повесить шкафы, вытянутые вертикально. Если же в куне множество различных коммуникаций, труб, арматуры и прочих предметов, которые портят внешний вид, шкафы лучше делать более широкими. Возможно, также подумать над проектом верхнего короба, в который можно будет спрятать все или хотя бы частично нелицеприятные для интерьера детали.
Идеальным расстоянием от навесных шкафов до столешницы называют 60 см. Но это стандартная величина и может регулироваться согласно индивидуальным особенностям. Если шкафчики будут висеть слишком низко, они могут мешаться при готовке, и в них невозможно будет спрятать коммуникации. Если же повесить их слишком высоко, это также создаст некоторые неудобства при эксплуатации. Чтобы достать какой-то предмет, находящийся внутри или сверху шкафа, человек необходимо будет поставить стул или стремянку.
Основные правила и стандарты определения высоты крепления
Под высотой размещения навесного шкафа подразумевается 2 показателя: расстояние от пола до нижней полки и верхний уровень размещения. В ГОСТах имеются точные рекомендации, однако подбирать параметры самостоятельно легче. Строительные стандарты отличались в разное время, поэтому придется «считаться» с особенностями помещений, в первую очередь с высотой потолка. Принимая решение по поводу высоты размещения кухонных шкафов, следует учитывать 3 основных фактора.
Первым делом берется во внимание назначение тумб: в них могут размещаться специальные модули. Второй момент — местонахождение: над нижним ярусом или над свободным пространством
Однако все эти расчеты бесполезны, если не учесть рост человека, занимающегося приготовлением еды. С точки зрения дизайна, проще устанавливать стандартную мебель — она удачно впишется в пространство.
Размеры и высота нижних шкафов
Госстандарт предусматривает высоту размещения нижнего края навесных шкафов на уровне 135—150 см, если они крепятся над напольным ярусом. Нижние тумбы всегда устанавливают вровень, а их высота согласовывается с ростом хозяев. Обычно результат получается около 85—95 см. Расстояние между столешницей нижнего яруса и нижним краем верхнего в подавляющем большинстве случаев находится в пределах 45—60 см, причем оставлять менее 45 см недопустимо. Этот интервал (45—60 см) — нормальное расстояние для фартука рабочей зоны кухни. На данном участке должно найтись место для бытовой техники вроде мультиварки, микроволновки, кухонного комбайна. Если запас к нижнему ряду слишком маленький, то человек может ударяться головой при мытье посуды. Для удобства высокорослых расстояние может быть больше 60 см. В случае, если рост владельцев очень высокий, то и нижний и верхний ряды мебели покупаются значительно выше.
Стандартные габариты нижних шкафов:
- Высота — 80—95 см.
- Глубина — 50—70 см.
- Ширина (одной секции) — 35—80 см. Однако есть узкие варианты, например, бутылочницы.
Высота от пола
Независимо от того, есть нижний ярус шкафчиков или нет, действует универсальное правило размещения нижней кромки навесных шкафов — она должна находиться ниже уровня плеча примерно на 5—7 см. В данном случае имеет смысл рассчитывать средний показатель у всех взрослых. Если нижний ярус отсутствует, то высота нижней кромки на уровне 130—135 см позволит без препятствий доставать принадлежности с верхних полок. Подсчитано, что хозяйке среднего роста (160—170 см) в стоячем положении будет удобно использовать шкафчик на высоте 1300—1900 мм. Если воспользоваться стулом — ей станет полностью доступен ящик на уровне 1900—2400 мм. Высоту размещения можно согласовывать с оптимальной и наилучшей видимостью. Для хозяйки с вышеуказанными параметрами это 140 и 165 см соответственно. Для нее же высота около 180 см разделяет зоны ограниченной (ниже) и наименьшей доступности (выше).
Верхняя граница размещения шкафа
Отталкиваются прежде всего от расстояния между навесной конструкцией и столешницей. В остальном все зависит от высоты секций. Однако же следует изначально подыскивать варианты для оптимального положения по верхней границе. Нет никакой потребности в полочках на высоте от 210—220 см — даже для высоких хозяек они будут неудобными. На кухнях с потолком ниже 2,6—2,7 м высокое размещение гарнитура помешает обустройству верхней зоны, если такое планировалось. В любом случае перед покупкой мебели на стене лучше нарисовать отметки максимально допустимой высоты вверху. Она должна находиться на 20—25 см выше роста самого высокого члена семьи или же среднего роста взрослых. Показатель идеальной высоты верхнего края шкафов никак не зависит от соблюдения правила треугольника или конфигурации кухни, будь то П-образная, угловая, линейная или двухрядная.
Верхняя граница размещения шкафа
На показатель размещения верхней границы кухонного шкафчика, в первую очередь, влияет высота потолков. Чем выше потолки, тем целесообразнее сделать шире фартук и, соответственно, разместить шкафы выше. Недостатки у шкафчиков под потолком очевидны:
- Сложность в реализации. Конфигурация потолков и самой мебели не всегда позволит закрепить его максимально высоко.
- Доступ к самым верхним полкам будет затрудненным, особенно при потолках от 2,5 м.
- Стоимость. С увеличением площади фасадов увеличится общая стоимость кухни.
Но преимуществ все-таки больше. В первую очередь, все хозяйки ценят практичность использования любого пространства. Зачем на шкафчиках будет скапливаться пыль, если на этом месте можно что-то хранить? В любом кухонном арсенале есть предметы, которые используются довольно редко или просто не нравятся, но выбрасывать жалко. Как раз их можно хранить на труднодоступных полках. Также популярность набирает минимализм интерьера, поэтому многие стремятся по возможности убрать все лишнее с видимого пространства, закрыть и спрятать. Как раз использование шкафчиков до самого потолка позволяет с легкостью это сделать.
Вертикальные узоры на обоях, карнизы под потолок и другие хитрости используются дизайнерами с одной целью – визуально увеличить стены и высоту потолков. Тот же принцип работает и с навесными кухонными шкафами, главное использовать светлые или нейтральные цвета для фасадов. К тому же размещение под самым потолком может избавить от поисков идеального решения для оформления и декора стен – они просто будут закрыты.
В случае низких потолков все эти моменты также работают. И имеют даже больше преимуществ. Ведь добраться до полок, которые расположены под потолком, но ниже, чем на уровне 2,5-3 метров, намного проще.
Важно! Необходимо помнить о вентиляционных системах – шкафы не должны их закрывать
Что учитывать при выборе высоты?
При выборе высоты для навесных шкафов на кухне стоит учитывать множество факторов. Однако если сделать все правильно, то кухонное пространство будет удобным и практичным. Перед монтажом и подбором высоты стоит учесть:
- рост того, кто больше других проводит времени на кухне, а в идеале – всей семьи;
- наличие свободного пространства под шкафами;
- другие предметы кухонной мебели и их конфигурацию, размеры.
Довольно часто пространство под висящими шкафами не остается пустовать. Его занимают или предметами мебели, или какими-либо бытовыми приборами. Конечно, чаще всего под ними размещают столешницу, и с этим надо считаться. Ведь на ней будут располагаться оборудование и посуда, поэтому стоит сделать так, чтобы нижняя граница шкафа не мешала нормальной работе.
Рост человека
Основной фактор при выборе высоты подвесных шкафов – человеческий рост. Ведь оттого, насколько удобно работать на кухне, зависит не только комфорт, но и качество готовой еды. Чем проще работается на кухне, тем больше будет желания готовить. Многие хозяйки не любят процесс готовки только за то, что им приходится много наклоняться, взбираться на табуретки, уклоняться от раскрываемых дверок. В итоге возможность получения травм возрастает, а вот желание готовить – наоборот.
По мнению экспертов, для человека ростом 175 см нижняя граница шкафа должна располагаться на высоте 150-155 см от пола. Для хозяек ростом более 175 см данный показатель должен составлять 160 см, а при росте более 185 см уместно размещение на уровне 165-170 см от пола.
Важно при этом учитывать и высоту навесного шкафа. Лучше всего, если высота верхней полки будет находиться на расстоянии, равном росту человека плюс 20 см
Что касается нижней полки, то ее лучше всего размещать на уровне глаз.
Средний рост всех членов семьи целесообразно учитывать, если на кухне готовят периодически каждый из них. Если готовит кто-то один, то достаточно за основу отсчета взять его рост. Для людей среднего роста оптимальным является расположение навесной мебели на высоте 140-150 см.
При выборе высоты, на которой будут монтироваться шкафы, лучше всего придерживаться пары несложных правил:
- высота, на которой находятся подвесные кухонные шкафы, должна позволять хозяйке без подставок и лишних усилий дотягиваться до верхней полки;
- высоту для навесных шкафов на кухню стоит подбирать так, чтобы встав с ними рядом, хозяйка могла видеть, не поднимая головы, предметы, стоящие, на верхней полке.
Габариты мебели
Чтобы избежать многих проблем, стоит выбирать стандартный гарнитур. Так, типовые размеры навесных шкафов для кухонного пространства выглядят следующим образом:
- высота варьируется от 35 до 70 см;
- глубина составляет от 25 до 45 см;
- ширина находится в диапазоне от 15 до 80 см.
Как правило, стандартный показатель высоты нижнего яруса достигает 90 см. В него входят высота цоколя и каркаса, а также толщина столешницы. Что касается глубины нижних шкафов, то она в среднем составляет 60 см (плюс-минус 10 см). Допускается, чтобы рабочая поверхность столешницы выступала за край тумбы примерно на 4 см.
Для подбора нижней границы, на которой будет располагаться навесная конструкция, важно учитывать все вышеперечисленные параметры. Нижняя полка шкафов должна располагаться на высоте 85 см над столешницей
Для шкафов высотой от 70 см выбирают расстояние от нижней кромки до рабочей поверхности, равное 60 см. Что касается второй и третьей полок в навесных шкафах, то они должны располагаться на наиболее подходящей и наибольшей высоте соответственно
Нижняя полка шкафов должна располагаться на высоте 85 см над столешницей. Для шкафов высотой от 70 см выбирают расстояние от нижней кромки до рабочей поверхности, равное 60 см. Что касается второй и третьей полок в навесных шкафах, то они должны располагаться на наиболее подходящей и наибольшей высоте соответственно.
Зависимость от вытяжки и плиты
Устанавливать над плитой навесные шкафы нельзя. Однако их вполне можно монтировать над вытяжкой. Причем данное решение для многих интерьеров успело стать классикой.
При монтаже расстояние от варочной поверхности до шкафов должно составлять не менее 60-65 см. Вряд ли в данном случае удастся установить шкафчики на уровне соседних секций. Однако надо еще учесть, что встречаются материалы, которые при нагревании способны выделять опасные вещества, как, например, ДСП. На расстоянии 75 см от газовой плиты и 65 см от электрической рекомендуется устанавливать вытяжку, а уже над ней крепятся навесные шкафы. Термовытяжка даже имеет специальные варианты форм для более удобного размещения предметов кухонной мебели.
Использование дополнительного функционала
После ознакомления с тем, как правильно расставить мебель и технику, стоит подумать об усовершенствовании проекта посредством применения дополнительных элементов. Именно мелкие детали создают уют и комфорт. Самым распространенным решением по оптимизации используемого пространства выступает система рейлингов и крючков. Простые трубочки, расположенные на стене вдоль столешницы, значительно облегчат труд хозяйки и сэкономят время. При наличии дополнительной ниши ее также можно оформить системой рейлингов, повесив всевозможные полезные либо декоративные предметы.
В узкой, малогабаритной кухне отличной заменой обеденному столу станет барная стойка. Она обладает хоть и меньшими, но достаточными размерами для приема пищи. Кроме того, возможна складная модель, которая достается по мере необходимости. Расположить барную стойку можно в любом удобном месте. Наиболее популярны следующие варианты размещения: в качестве продолжения кухонного гарнитура, под окном, у стены.
Высота ярусов
Нижний ярус
Нижние кухонные шкафы по глубине вдвое могут превосходить верхние – те имеют высоту от 30 см. Встраиваемая техника (микроволновка, однокамерный мини-холодильник, тостер и т. д.) увеличит это значение до 40 см. При дальнейшем увеличении глубины верхнего шкафа вы будете чаще ударяться о него головой. Наиболее часто встречающаяся глубина нижнего яруса составляет 60-80 см.
Верхний ярус
Чтобы пользоваться кухней было приятно и комфортно, в среднем расстояние от столешницы рабочего места до нижнего края верхних шкафчиков равно 50-55 см. Высота верхних шкафов задаётся высотой потолков и в среднем равна 70 см. Если в доме или квартире потолки от 3 и более метров, то высота верхних шкафов может достигать метра и более. Ширина навесного яруса равна 15-80 см, это могут быть как полки для специй, так и вместительные шкафы для хранения посуды.
Технику располагать в них не рекомендуется. Например, вместительная микроволновка, весящая 10 кг, может потяжелеть ещё на 3, когда в ней разогревается или готовится одно из блюд для 5-8 гостей. Та же микроволновка при работе издавала бы гудение и вибрацию, добавляющие нагрузку на и без того перегруженный кухонный шкаф.
При малой площади кухни в 5-6 квадратных метров или при нестандартном, например, многоугольном помещении под кухню в загородном доме попробуйте оригинальный проект. Он стоит дороже, но переплата окупается законченной и свободной планировкой, создающей впечатление кухни большего размера. И для маленьких, и для просторных кухонь высота верхнего и среднего ярусов должны быть одинаковы.
Правильная планировка улучшит общий вид. Игнорирование же правил замеров придаст гарнитуру эффект скученности, излишней тесноты. Если при установке опорной планки шкафы перевешиваются, то образуется зазор – планку также следует поднять выше.
Кованые козырьки над крыльцом + фото
Как повесить кухонные шкафы на монтажную рейку
Пошаговая инструкция:
- выбрать высоту, на которую нужно подвесить ящики;
- начертить на стенке линию;
- перфорированная планка для крепления шкафов должна находиться ниже верхней границы навесной мебели приблизительно на 2-4 см;
- просверлить дыры в стенке через отверстия в монтажной железной рейке;
- дюбелями и винтами присоединить стальную планку к стенной поверхности;
- можно прикрепить дополнительную рейку по нижней границе навесных шкафов;
- сделать в задней стенке мебели небольшие отверстия для выхода наружу крючков прикреплённой навески;
- прикрепить навесные крюки по бокам мебели болтами или саморезами;
- крюк должен выступать за заднюю перегородку модульной конструкции на 2-5 мм, ему нужно зацепиться за прикреплённую планку;
- подвесить модуль на рейку с помощью крюков.
Верхние кухонные шкафы можно подвесить на стену с помощью монтажной рейки за несколько часов (1-2 ч). Справиться с такой работой может один человек. Благодаря такому способу подвешенные шкафы можно плотно придвинуть друг к другу. Одной планки длиной в 2 м хватает, чтобы подвесить на стенку несколько шкафчиков.
Крепление шкафов на железную планку
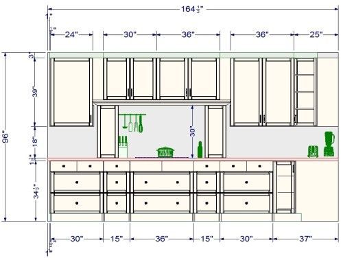
Стандартные нормы высоты кухонных шкафов
Прежде всего, нормы высот, основных размеров и расстояния между отдельными элементами мебели регулируются стандартами ГОСТ. Приведенные в них нормы помогают соблюдать эргономику в размещении мебели, что в итоге помогает упростить процесс приготовления, не испытывая при этом никаких посторонних нагрузок на организм.
По стандарту расстояние между верхним и нижним кухонными шкафами не превышает 60 см.
Высота верхних шкафчиков
Расположение края верхнего яруса мебели рекомендуется ограничивать на уровне 1,9м. Причем такой стандарт дается вне зависимости от высоты потолка. Эти ограничения позволяют свободно размещать вытяжку над плитой, вне зависимости от ее габаритов.
Для хозяек ростом до 160 см верхние шкафчики подвешиваются на высоте 165 см от пола.
Если данная техника используется при работе электрических плит, вытяжку устанавливают на расстоянии 70 см от поверхности, 80 см потребуется для техники, работающей на газу. При высоком росте человека допустимо увеличение расстояния нижнего края вытяжки от поверхности варочной панели или плиты до 90см.
Отсчёт высоты ведётся от верхнего края. Общая формула – рост человека и дополнительное расстояние до 25 см.
Нижняя полка такого ряда должна располагаться на расстоянии 1,5м от пола. При подобной компоновке остается достаточно места между нижним и верхним ярусом кухни, что не будет доставлять лишних неудобств в процессе приготовления еды.
Подвешивать шкафы высоко, чтобы дотянуться до полок можно было, встав на стуле, не рекомендуется, если нет редко применяемых вещей.
Высота нижних шкафов
Расчет нижнего яруса ведется исходя из размеров верхнего. Согласно стандарту, между нижним краем навесных шкафов и столешницей должно оставаться не менее 90 сантиметров свободного пространства. Это позволяет иметь достаточно свободы для приготовления даже самого сложного блюда, состоящего из множества ингредиентов.
При установке мебели следует, в первую очередь, ориентироваться на свои потребности и конкретные задачи, которые она должна решать.
Чаще всего при изготовлении кухни отталкиваются от индивидуальных параметров людей, которые будут пользоваться мебелью. Так, при излишне высоком или маленьком росте любого из членов семьи размеры и соотношения между рядами мебели можно пересмотреть как в одну, так и в другую сторону. Рекомендации на этот случай рассмотрим далее.
Следует сказать, что не существует единого стандартного параметра, который подойдет любому человеку и удовлетворит все его прихоти.
стандартная высота нижних и верхних шкафов
Размещая в кухне высокие шкафы, можно решить несколько актуальных задач. Они визуально приподнимают потолок, внося ощущение более просторного помещения. Еще одна функция связана с обеспечением дополнительными местами хранения. Производители при изготовлении мебели ориентируются на ГОСТ 13025.1-85, регламентирующий размеры шкафов для кухни.
Стандартные размеры напольных шкафов
Ориентир на высоту кухонных шкафов обусловлен тем обстоятельством, что от этого показателя зависит степень удобства выполнения многообразных операций на их рабочих поверхностях. Женщине среднего роста наиболее комфортно резать смешивать, раскатывать в процессе готовки, если приобрести шкаф высотой 850 мм. Это минимальный показатель, регламентируемый ГОСТом.
Диапазон нормативных высот – 850 ÷ 900 мм позволяет устанавливать более высокие модели шкафов на кухне. Изменение в большую сторону расстояния от пола до верхней рабочей плоскости происходит за счет увеличения толщины столешницы в пределах от 28 до 40 мм. В ассортименте нижних кухонных шкафов при необходимости можно найти модели с регулируемыми ножками, позволяющими оптимально подогнать их высоту под особенности роста конкретного человека.
Особенности высоты навесных шкафчиков
По поводу рационального размещения верхнего яруса гарнитура на кухне ГОСТ определяет предельную высоту нахождения последней полки в 1,9 метра вне зависимости от габаритов самих шкафчиков. Особого внимания требует выполнение этого требования, если используется их монтаж на разном уровне. Расстояние между нижней поверхностью навесного и верхней рабочей плоскостью кухонного напольного шкафа не должно быть меньше 450 мм.
Нужно отметить, что ГОСТ регламентирует указанную высоту для случаев, если верхняя полка регулярно используется. В других ситуаций, когда требуется оборудовать место хранения предметов, которые эксплуатируются редко, допускается превышение этого показателя.
Разноуровневая планировка
Выбирая схему расстановки нижних шкафов, можно разнообразить интерьер кухни, если выполнить верхнюю поверхность не в одной горизонтальной плоскости, а в нескольких уровнях. В такой ситуации высокие шкафы, достигающие порой потолка, позволяют в средних секциях встраивать бытовую технику, а верхние полки использовать как резервные места хранения.
Невысокие кухонные шкафы неплохо справятся с ролью подставки для комбайна, кофеварки или декоративного аквариума. На достаточно просторной кухне здесь можно оборудовать мини-цветник и даже выращивать зелень, если поставить шкаф к стене около окна.
Нестандартные решения
Привычная для взгляда, стандартная планировка кухонного помещения с установкой гарнитура в два яруса постепенно преобразуется в ряд высоких шкафов, заполняющих полностью стену. Особенно эффектно они смотрятся в условиях достаточно просторной кухни.
Среди достоинств такого нестандартного решения отмечается наличие большого количества мест хранения. Также отпадает необходимость выполнять тщательную отделку одной стены, что явится экономией финансов и времени. Целый ряд вытянутых по вертикали высоких шкафов со светлой отделкой зрительно приподнимают потолок, создавая впечатление более просторной и уравновешенной кухни. Немаловажным критерием для хозяек становится тот факт, что теперь не будет скапливаться пыль, что было присуще верхним поверхностям навесных шкафчиков.
Одним из способов облегчения пространственного восприятия является обустройство самых верхних полок открытыми, что позволяет установить на них коллекционные тарелки, красивую керамику, изящные статуэтки, ценные виды посуды. Закрытые кухонные фасады, скрывающие за собой всю бытовую технику, создают на кухне ощущение единого цельного образа.
Высота от столешницы до навесных шкафов, стандарты расположения верхних и нижних
На чтение 4 мин. Опубликовано Обновлено 10.05.2019
С покупкой кухонной мебели сразу возникает ряд важных вопросов по ее сборке и монтажу. Самым сложным в плане установки является гарнитур. Здесь важно правильно определить расстановку модулей, вычислить оптимальное расположение его частей относительно друг друга. От этого зависит то, насколько удобной для домочадцев станет будущая кухня. На один из таких важных вопросов мы как раз и ответим в данной статье, а именно – на какой высоте вешать кухонные шкафы?
Разделы статьи
Размеры шкафов
Шкафчики – обязательный элемент кухонного гарнитура.
Устанавливая их, предусматривают стандарты шкафов, размер помещения, стиль мебели (модульная или встроенная), дизайн комнаты и даже рост собственницы.
Общую картину поможет составить заранее построенный проект новой кухни. Создать его можно, прибегнув к помощи профессионалов, или собственноручно.
Алюминиевые фасады для кухни: преимущества, стильность, практичность, 55+ лучших фото
Как выбрать угловую раковину для кухни: важные параметры выбора — лучшие фото интерьера кухни с угловой мойкой
Как правильно выбрать постформинг столешницы для кухни — рекомендации и фото
Рассмотрим, как выбрать шкафы разных моделей самому.
Нижний ярус
Формируя его, следует учесть параметры:
- Высота плиты.
- Глубина плиты, колонки.
- Высота нижележащих ящиков – 85 см (для субъекта ростом выше 170 см этот размер увеличивается).
- Ширину дверок.
- Размер полок индивидуален.
- При расчете высоты столешницы учитывается расстояние от пола до верхнего яруса шкафов. Также предпочтительно, что бы она выступала на 3,9-6 см.
- При определении размеров тумб, учитывается размер их ножек (обычно 10-15-20 см). Можно приобрести ножки с регулировкой высоты.
Верхний ярус
Важные параметры при установке верхних шкафов кухни:
- Расстояние от плиты до вытяжки должно быть 70 – 80 см. Если плита электрическая – меньше, газовая – больше.
- Суммарная ширина фасадных дверок.
- Рост жильцов квартиры.
- Ширина тумб, расположенных снизу.
- Стандарты глубины расположения.
- Расстояние от столешницы до шкафчика.
- Метод крепления.
Мойки для кухни из искусственного камня — как правильно выбрать
Как выбрать маленький диван на кухню. Фото эксклюзивных диванов для малогабаритной кухни.
Как правильно выбрать красивые и удобные стулья на кухню
Угловые модели
Схема расчетов:
| Параметр. | Габариты в см. |
| Стандартная высота гарнитура. | Выше 179, но ниже 251 |
| Глубина шкафов. | Висящих: 30-40 см. Напольных: 45-50 см. |
| Размер фасада (стандартный). | 29-41 см |
| Толщина столешницы (чем больше – тем лучше) | 2 – 4. |
| Расстояние от рабочей территории. | Не менее 45 см. |
Важные нюансы при вешании кухонных шкафов
Минимальная высота размещения вытяжки над кухонной плитой
Дабы в точности обозначить высоту для навеса мебели, надлежит иметь в виду следующие данные.
- Рост ваш и ваших родственников.
- Уровень потолков помещения.
- Высота мебели – конкретно шкафчиков.
- Предположительный интервал между рабочей зоной и навесными шкафами.
- Порядок эксплуатации шкафов.
Удобство использования кухонной мебели – первый признак приятного и функционального пользования
Какого роста вы и домочадцы – главная особенность, этот нюанс и влияет, как они будут размещены и насколько удобно ими пользоваться. В идеале высота должна соответствовать уровню глаз – это позволит с легкостью дотянуться до нужной полки. Дабы не ошибиться в расчетах, помните, что верхушка шкафчика должна превышать рост человека не больше чем на 20-25 см. Если рост составляет 175-178 см, нижний край шкафа располагают на уровне 1 м 55 см от пола. Если вы ростом 1 м 85 см, мебель вешают не ниже 1 м 60 см от уровня пола. Если вы выше двух метров, вешайте шкаф на высоту 1 м 75 см.
Кухня на заказ – прекрасная возможность создать такую мебель, которая соответствовала бы нашим потребностям и привычкам
Если потолки на кухне низкие, не стоит приобретать высокие шкафы – это учитывается в обязательном порядке. Современное устройство шкафов позволяет их крепить на той высоте, какая удобна, уровень потолков учитывается. В комплект кухонного гарнитура входят различные крючки и навески. Их фиксируют на тыльную сторону шкафа, потом мебель вешают на планку, закрепленную к стеновой перегородке.
Удобный вместительный стеллаж позволяет сделать навесные модули небольшими
Если получилось так, что навесная мебель достаточно высокая, ее необходимо монтировать так, чтобы между шкафами и рабочей зоной был промежуток. Одно но – они будут размещены высоко, хозяюшке будет сложно дотянуться до верхних полок, что вызовет определенный дискомфорт. Лучше приобретайте небольшие шкафы или определитесь – для вас превыше всего промежуток между верхней и нижней зоной или же комфортное размещение навесной мебели.
Следует обратить внимание на механизмы открывания дверей на верхних шкафах
Оптимальное расстояние между столешницей и навесными шкафами составляет 0,55-0,6 м. Здесь можно поставить бытовые приборы и другие предметы. Если шкафчики предназначены для атрибутов, редко применяющихся, повесьте их повыше, чтобы они использовались для хранения такого инвентаря. А на нижних полках лучше хранить те вещи, которыми вы постоянно пользуетесь.
Крепежные планки на старых шкафах
Итак, теперь вы знаете, на какой высоте вешать кухонные шкафы. Над плитой их лучше всего не располагать. Обычно здесь размещают вытяжку. На высоте в 55-60 см жар до края шкафчиков доставать, конечно, не будет. Однако пар от готовящейся пищи испортить мебель все-таки может.
Когда-то навесные шкафчики крепились к стенам с помощью довольно-таки примитивных подвесок с отверстием под дюбель. Разумеется, никакой возможности регулировки по вертикали или горизонтали они не давали. Выполнять работу по установке навесных шкафов с использованием таких планок было очень сложно. Предварительную разметку следовало делать максимально внимательно. Если мастер в чем-либо ошибался, работу приходилось делать заново. Ведь неровно висящие шкафы выглядят не особенно красиво. В настоящее время подобные подвески в мебели не используются.
Более современные навесные шкафчики фиксируются к стене через так называемые «ушки». Этот тип крепления немного похож на предыдущий. Разница между ними лишь в размере отверстия. У «ушка» оно очень широкое. Это дает возможность регулировки положения шкафа по горизонтали. Однако по вертикали сдвигать мебель при использовании такого способа крепления нельзя. В этом случае ответ на вопрос о том, на какой высоте вешать кухню, также должен быть максимально точным. В стену при применении такого способа крепления вбивается особый крюк, на который и насаживается «ушко».
Вступление
Вопрос, на какой высоте вешать кухонные шкафы, может показаться риторическим. Ведь всем известна классическая высота кухонных шкафов от столешницы в 600 мм. На самом деле эта высота работает не для всех шкафов и нужно объяснить, почему принята именно эта высота кухонных шкафов над столешницей.
Способы установки
Когда вы определились с высотой, дело за малым – правильно повесить. Здесь тоже существуют некоторые подводные камни и хитрости.
- Крайне нежелательно вешать шкафчики на гипсокартонную стену, она недостаточно прочная.
- Вместо привычных дюбелей или деревянных чопиков попробуйте использовать анкерные болты. Они более надежные, прочные и безопасно крепятся.
- Использование монтажных реек помогает равномерно распределить нагрузку по стене.
- Обязательно используйте высококачественные материалы и крепежи для навесных шкафов. Не забывайте, что кухонные шкафы, особенно с посудой, очень тяжелые. Лучше немножко переплатить за качественный крепеж, но быть уверенным, что шкафчик не упадет вам на голову.
- И, конечно, закрепляйте шкафчики надежно.
Рассмотрим несколько способов повесить настенные шкафчики поэтапно.
Первый способ — крепление шкафчиков на болты или саморезы.
- Отмерьте высоту верхней границы шкафа и сделайте отметку на стене.
- При помощи уровня прочертите линию по всей длине кухни, где вы предполагаете вешать шкафы.
- Отмечаем место под один крепеж (саморез, дюбель, анкерный болт). И тщательно его закрепляем.
- Закрепив на задней стенке шкафа петли, аккуратно навешиваем его на уже закрепленный крепеж.
- Просим кого-либо подержать шкафчик в этом состоянии, а сами отмечаем место для второго крепежа.
- Закрепляем второй крепеж.
- При необходимости повторяем пункты 3-7 для каждого навесного шкафчика.
- Для большей надежности конструкции шкафы скрепляют между собой.
- После этого можно вставлять полки, вешать дверцы, фурнитуру, крепить карнизы и подсветку, если она есть.
Второй способ — крепление шкафчиков на монтажную рейку. Этот способ подходит только для ровных стен. Поэтому прежде чем приступать к работе убедитесь в том, что ваши стены достаточно выровнены или сделайте предварительный ремонт.
Важно! При креплении на монтажную рейку обязательно пользуйтесь уровнем.
- Отмерьте верхнюю границу шкафа или сделайте его абрис на стене.
- Определите место, где будет находиться монтажная рейка.
- Сделайте необходимые отверстия и повесьте монтажную рейку.
- На задней стенке шкафа с помощью уровня прочертите линию крепежа и закрепите петли и крючки.
- Навесьте шкафчики на рейку.
- Теперь необходимо скрепить шкафчики между собой. Для этого аккуратно просверлите сквозные отверстия в боковых стенках и стяните их между собой, используя струбцины.
- Теперь можно вставлять полки, навешивать дверцы и фурнитуру.
Вешать на монтажную рейку гораздо удобнее. Этот способ крепления прочнее и надежнее, а также менее трудоемок в плане разметки стен. Вы вполне способны повесить все самостоятельно. Шкафчики можно сдвигать по рейке как по горизонтали, так и по вертикали.
Однако стоит такое крепление на порядок дороже обычных болтов. Кроме того, при таком способе крепления между шкафом и стеной образуется небольшой зазор. Чтобы он не портил вид, на нижний край шкафа прибивают рейку такой же толщины, как и монтажная, и навешивают шкаф слегка заходя на кухонный фартук.
Понятие эргономика для кухни
Эргономика это не понятие, а наука, изучающая повседневное взаимодействие человека предметами окружающей среды для выявления оптимальных условий жизни.
Проще говоря, эргономика может подсказать, как расположить возле себя предметы, в частности мебель, чтобы было удобно ими пользоваться, а значит удобнее жить и/или выполнять свою работу.
На кухне данные эргономики особенно важны, потому что кухня в квартире это место, где человеку приходится не только отдыхать, но работать – готовить пищу.
Данные, которые предоставляет эргономика, по расположению предметов интерьера, расстояний установки мебели, высоте кухонных шкафов над столешницей и т.п. не являются догмами и должны применяться с учётом удобства людей, которые в этой среде будут жить и работать.
Это значит, что высота навеса кухонных шкафов для невысоких людей, может не подойти для людей с большим ростом или наоборот.
Высота кухонной столешницы от пола
Типовая вышина приведена в таблице:
| Рост человека. | Стандартный размер высоты кухни от пола до столешницы. |
| До 151 см. | Около 76 см. |
| 151 – 181 см. | Максимум 90 см. |
При выборе столешницы учитывают:
- Высоту мойку. Высота столешницы на кухне от пола должна быть такая же, как у нее.
- Высоту панели для варки. Желательно расположить ее немного ниже.
- Предназначение. Столешница для нарезания продуктов должна обладать предельным масштабом поверхности.
Мнение эксперта
Эдуард Радиховский
Работает в проектном агенстве «Декорико» 14 лет. Делится своим опытом на старинцах нашего онлайн журнала.
Обратите внимание! При выборе материала столешницы, большинство покупателей отдают предпочтение ДСП, которому приданы влагостойкие свойства, а также ламинированным моделям.
Предпочтительная глубина около 70 см. Также на высоких столешницах работать трудно, потому что ладони приходится держать неестественно приподнятыми.
Поверхность для нарезки и разделки
При расположении учесть факторы:
- Ее диспозиция – идеальное на уровне пупка.
- Площадь поверхности должна быть максимальной.
- Мойку расположить неподалеку.
Предпочтение следует отдавать гарнитурам с двухуровневыми рабочими зонами, что предусмотрено далеко не всеми производителями.
Мойка
Габариты мойки важны, так как домохозяйки много времени тратят на мытье посуды.
Оптимальная высота рассчитывается так:
- Определяется расстояние между полом и локтем человека.
- Производится замер ширины кулака (между крайними пальцами кисти в сжатом состоянии, обычно около 12 см).
- Значение второго пункта отнимаем от первого. Полученное число будет идеальной высотой мойки.
На заметку! В идеале, мойка должна быть расположена ниже разделочной области.
Варочная панель
Высота должна быть такой, что бы была возможность заглянуть в кастрюлю, стоящую на плите.
Ее замеряют, взяв самую высокую кастрюлю для еды и разместив на пиковом уровне доступности обзора ее содержимого.
На заказ мебельщики изготовят ее в соответствии с необходимыми размерами. При покупке готового гарнитура, изменить высоту можно, отрегулировав ножки или использовав цоколь.
Особенности монтажа
Итак, с тем, на какой высоте вешать кухонные шкафы, вы определились. Теперь можно приступать собственно к самому монтажу. Работа эта выполняется в несколько этапов:
- По стене на уровне верхнего края шкафа отбивается прямая линия. Для того чтобы начертить ее строго горизонтально, стоит воспользоваться строительным уровнем.
- Далее следует измерить расстояние от верха шкафчика до крючка регулируемого навеса.
- Полученное расстояние нужно отмерить от прочерченной на стене линии вниз и провести еще одну линию. Она будет служить ориентиром для верхнего края монтажной планки.
- Приложив последнюю к стене, нужно просверлить отверстия под дюбеля.
- Далее планка плотно прикручивается.
- На эту шину посредством крючков регулируемого навеса вешаются сами шкафы.
- При необходимости корректируется их положение.
Таким образом, использование современных регулируемых навесов – отличный ответ на вопрос о том, как правильно повесить кухонные шкафы без лишних мучений.
Полезные советы
В основном полезные советы касаются способов установки верхних шкафчиков кухонного гарнитура. Потому что, как уже было сказано выше, надежность крепления – залог безопасной эксплуатации мебели.
- Крепежные материалы должны быть прочными и надежными, особенно, когда навешивается деревянная мебель. Она очень тяжелая, плюс заполнение. Поэтому рекомендуется в качестве крепежей использовать металлические дюбели-шпильки.
- Если стена была выровнена толстым слоем штукатурки, но устанавливать и крепить шкафы на нее можно только после полного высыхания штукатурного слоя и достижения ее марочной прочности, на что может уйти пара недель.
- Если стены на кухне были обшиты гипсокартоном, не вешайте на них шкафчики. Такая стена данной нагрузки не выдержит. Или придется по уровню навески под листы ГКЛ установить сдвоенный металлический профиль, который сам будет прикреплен к стене металлическими дюбелями.
- Перед приобретением гарнитура нужно замерить высоту потолков на кухне и длину стены, у которой он будет устанавливаться. Здесь важно не ошибиться с точным подбором. Небольшое допущение или припуск – и мебель просто не поместиться в отведенный для нее участок пространства.
- Учитывайте и ширину столешницы, она не должна мешать открывать дверцы навесных шкафов.
- При установке крепежей убедитесь, что в местах их монтажа не проходит электропроводка.
Что можно сказать, подытоживая сказанное выше. Расстояние между верхними и нижними элементами кухонной мебели – наиважнейшая составляющая, которая определяет удобство пользования кухонным гарнитуром. В основе выбора данной величины лежит только рост человека, который чаще других пользуется кухонным пространством. Поэтому, соизмеряя его, надо и навешивать верхние шкафчики.
Разноуровневая мебель в кухонном гарнитуре
Разноуровневые гарнитуры более эргономичны. При работе на их поверхностях меньше устают мышцы спины (особенно актуально для людей с заболеваниями позвоночника). Изготавливают такие кухни, как правило, на заказ, учитывая параметры их будущего владельца.
При этом рабочая столешница немного приподнимают (сантиметров на 10). А уровень плиты опускают приблизительно на такое же расстояние от стандартной величины. Также изменяется высота от пола до уровня стола, на котором замешивают тесто.
Эти кухни дороже, подходят для более просторных помещений.
Одноуровневый кухонный гарнитур стандартных размеров также может быть эргономичным при грамотном выборе высоты кухонной плиты.
Оптимизация расстояния под бытовые приборы
Кухонный гарнитур представляет собой сложную комплексную систему из нескольких модулей. Очень часто внутрь них встраиваются специальные вспомогательные изделия в виде стиральной машины, газовой плиты и т.д. В некоторых случаях это требует определенной регулировки расстояния между соседними атрибутами.
Это также влияет на высоту проема от столешницы до подвесного шкафчика. Существует несколько правил, которые регулируют данные расстояния для каждого конкретного элемента данной системы:
- Электрическая плита должна располагаться минимум на 65 см ниже, чем низ первой подвесной тумбы, расположенной непосредственно под ней. Данные рекомендации позволяют снизить воздействие температуры на структуру материала, из которого выполнен гарнитур.
- Верхний шкаф от газовой плиты должен располагаться на расстоянии минимум 70 см, так как подобные конструкции эксплуатируют открытый огонь. Данные факторы могут не только быть причиной износа ламинированной поверхности, но и прямого ее возгорания.
Обратите внимание, что в случае расположения других модулей возле таких приборов, нужно обеспечить минимальное воздействие температуры на структуру касающихся с ними материалов. Зачастую торцы тумб, которые будут стоять рядом с плитой, изготавливаются из стойких нагреванию веществ (металл и т.д.).
Грамотный замер кухни
Казалось бы, такая операция, как определение длины, ширины и высоты кухни перед покупкой гарнитура никаких особых трудностей вызывать не должна. Но поскольку стены в современных квартирах не особенно ровные, выполнять данную процедуру следует по определенным правилам. Мастера, изготавливающие кухонные гарнитуры на заказ, делают замеры обычно так:
- Промеряют длину кухни вдоль плинтуса как можно ниже.
- Выполняют замер вдоль стены на высоте в полтора метра.
- Делают измерения на высоте в два метра от пола.
В том случае, если по стене проходят водопроводные или какие-нибудь другие трубы, следует определить расстояние между ними и их толщину. Гарнитур придется под них подгонять. Далее на листе бумаги следует изобразить эскиз и нанести на него все сделанные замеры. Полученные три цифры нужно округлить в меньшую сторону. При выборе длины гарнитура следует ориентироваться на самое маленькое число.
Правильно выполненные замеры, таким образом, помогут вам выбрать наиболее подходящий гарнитур. Что же касается вопроса о том, на какой высоте вешать кухонные шкафы от пола, то ответ на него очень прост. Для хозяйки среднего роста этот показатель будет равен 82 + 60 = 142 см.
Кухонный гарнитур
При самостоятельной покупке и сборке, кухонный гарнитур также будет соответствовать всем необходимым размерам и чертежу, но стоимость услуги точно не будет «кусаться». Однако у самостоятельной покупки и сборки есть свои недостатки. О каких же недостатках идет речь?
- подобные работы отнимают много времени;
- правильно сделать замеры дилетанту очень сложно, а значит, гарнитур может не подойти для дома;
- собрать всю мебель самостоятельно нелегко без специальных навыков;
- при заказе гарнитура под ключ, имеются гарантии качества и минимальные сроки эксплуатации мебели. При самостоятельной сборке никаких гарантий нет.
Обычно сложности возникают именно с правильными замерами и со сборкой всей мебели для кухни. Чтобы приобрести идеальный гарнитур, который оптимально дополнит облик помещения, необходимо знать несколько важнейших характеристик мебели.
Правила хорошей покупки
Во-первых, перед покупкой всегда нужно правильно провести замеры. Измерить нужно не только высоту и ширину предполагаемого гарнитура, но еще и глубину тумбы, их количество и область использования.
Во-вторых, перед покупкой гарнитура в голове всегда нужно держать примерный облик желаемого результата. Определившись с количеством ящиков и их размером, будет гораздо легче совершить правильную покупку.
Профессионалы советуют выбирать кухонные гарнитуры с множеством дополнительных ящиков и полок, поскольку это заметно повышает практичность мебели.
Правило рабочего треугольника
На кухне выделяют 3 зоны:
- Рабочую – с панелью для термообработки провианта и разделочной поверхностью.
- Место хранения провизии (в центре – электрохолодильник).
- Область мытья продуктов и посуды.
Это будут углы треугольника.
В самом удобном месте поместить мойку (около нее хозяйка проводит 2/3 времени кулинарии). Морозилку располагают на расстоянии 1,3 – 2,3 м от нее. Плиту – через 1,3 – 1,8 м. Между плитой и холодильником должно быть не более 3,9 м. Образцовая площадь треугольника: 4,9 – 7,1 м.
По сути, расстояние между вершинами треугольника не должно превышать 2-х вытянутых рук.
Мнение эксперта
Эдуард Радиховский
Работает в проектном агенстве «Декорико» 14 лет. Делится своим опытом на старинцах нашего онлайн журнала.
Обратите внимание! Холодильник следует располагать в одном из углов помещения.
Рекомендации специалистов
Дополнительные рекомендации:
- Замер кухни лучше проводить до установки коммуникаций (водопровода, газопровода, электрики).
- В комнатах с низкими потолками, высота кухонного гарнитура от пола до потолка должна быть максимальной – длинные линии стенок шкафов визуально исправят этот дефект.
- Размеры мебели лучше выбирать кратные 15 см.
- Расстояние от гарнитура до другой мебели рассчитывают с учетом пространства на открывание дверок шкафчиков.
Видео: Стандартные размеры кухонной мебели.
Как вырезать отверстие под мойку в столешнице?
Индустрия мебельного производства предоставляет на выбор огромное количество различной мебели для кухни. Иногда мойка для посуды предлагается отдельно, и устанавливается покупателем самостоятельно. Для…
Кухня, в которой шкафы до потолка
Многие современные кухни оснащены навесными шкафчиками, когда между их верхней плоскостью и потолком имеется определенное расстояние. При подобной планировке остается неиспользованное пространство.Вот…
Угловой шкаф в интерьере современной кухни
Кухня является самой функциональной комнатой в любом доме, но и она же порой самая маленькая. Если квадратура кухонного помещения ограничена, то перед хозяевами становится проблема – как вместить все необходимое…
Устанавливаем шкаф под мойку без посторонней помощи
Вся кухонная мебель имеет основную задачу – создать комфортные условия для приготовления пищи. Мебельные фабрики стремятся предложить продукт не только практичный, но и привлекательный. В магазине…
Крепим плинтус к столешнице самостоятельно.
Многие женщины большую часть времени проводят на кухне, поэтому стремятся сделать ее максимально уютной и комфортной.Наличие плинтусов необходимо на любой кухне, купленной в магазине, заказанной…
Какую столешницу выбрать для кухни?
Жилище каждого отдельного человека отражает его сущность, вкусы, предпочтения и финансовое положение. Все стремятся облагородить дом, сделать красивый ремонт, обставить мебелью, чтобы, возвращаясь домой,…
Как правильно скомпоновать гарнитур
Для компоновки сложных помещений следует получить консультацию специалиста. Прямоугольные и квадратные кухни стандартных размеров не требуют особых навыков расстановки мебели в интерьере.
Компоновка кухонь:
- Прямая.
- Угловая.
- П-образная.
- Островная.
Прямой
Формируя компоновку гарнитура, мебель следует расположить по протяженности кухни в одну полосу.
Весь размер кухонного гарнитура не должен превышать 370 см. Если значение все-таки превышено, можно попробовать разместить под углом к гарнитуру холодильник.
Базовые характеристики вышеозначенных гарнитуров:
- Универсальность – достаточно, что бы его параметры соответствовали ширине и длине стены кухни.
- Бюджетность – не нужна индивидуальная планировка.
На заметку! Высокий 3-х ярусный гарнитур способен увеличить визуальные габариты кухни.
Угловой
При следующей компоновке гарнитура часть мебели размещается под углом. Желательно, чтобы расстояние между объектами не превышало 1,5 м.
Важна конфигурация угла гарнитура. Скошенная придает кухне оригинальность, но делает менее доступными мойку и верхние шкафы людям с метаболическим синдромом, также такая форма осложняет доступ к стенам при мытье.
Основные характеристики гарнитуров:
- Хороший спрос на них.
- Способность поместиться в комнатах любого размера.
- Комфортное использование.
П-образный
Такая компоновка рекомендована владельцам:
- Кухонь квадратной формы.
- Кухонь-студий (чтобы зонировать помещение).
Что бы создать такую форму, шкафы следует разместить вдоль двух стен комнаты под углом, а, затем, перпендикулярно к поверхности одной из них поставить столешницу (напоминает барную стойку).
Островной
Часто используется в кафе и ресторанах. Создавая такую компоновку, в центре комнаты необходимо установить отдельный модуль, в состав которого входят мойка и/или плита.
Высота его должна совпадать с высотой остальной обстановки (около 90 см). В отдельных случаях, данный параметр можно увеличить на 9-21 см.
Стандартное размещение
Кухонную мебель разрабатывают дизайнеры и конструкторы. Российские производители по-прежнему ориентируются на ГОСТы. У западных производителей мебель выглядит иначе. У них свои стандарты. Шкафчики для кухни, купленные в Икеа, будут по размеру больше отечественных.
На даче
Мебель из Китая несколько меньше, чем российские аналоги. Это связано со средним ростом людей, в чьей стране производится товар. Каждый ориентируется на себя. Понятие «удобно» у людей с ростом 160 и 180 см будет сильно отличаться.
Покупателям нужно ориентироваться на то, какое расстояние от навесных шкафов до столешницы приемлемо лично для них. Основное правило – нижняя полка навесного шкафчика находится на уровне глаз хозяйки.
На этом можно было бы закончить разговор о дистанции от столешницы до подвесного шкафчика, но есть одно обстоятельство. Это бытовая техника. В интервал между столешницей и настенными шкафами закладываются дополнительные параметры.
Светлые тона
Это необходимо для предотвращения возможных повреждений от работы электроприборов:
- пар, идущий от электрочайника;
- брызги от миксера;
- тепло, исходящее от микроволновой печи.
Чтобы сохранить мебель в нормальном состоянии на долгие годы, нужно учитывать эти негативные факторы. Стандартом считается расстояние в 50–60 см.
Именно этой величины достаточно, чтобы оградить мебель от попадания пара и жира.
Схема размещения нижних и верхних ящиков
Зависимость от вытяжки и плиты
Определяющий момент при подвешивании вытяжки – расстояние до плиты. В инструкции обычно содержится схема с размерами. При отсутствии документов на оборудование ориентируйтесь на такие правила:
- Минимальное расстояние от плиты до варочной поверхности — 65-70 см. При таком промежутке отсутствует риск контакта пламени с устройством.
- Нижний уровень вытяжки располагайте так, чтобы при готовке пищи не создавалось неудобств даже при использовании самых больших кастрюль.
- Верхнюю часть вытяжки устанавливайте на таком уровне, чтобы воздух втягивался со всех слоев помещения.
На высоту расположения непосредственно влияет тип плиты. Если она электрическая, разрешено вешать вытяжку на расстоянии в 65 см. Для газовой плиты эта цифра увеличивается до 70-75 см. Обычно устройство подвешивают на высоте от 70 до 90 см, учитывая рост повара.
Зависимость высоты от роста человека
При определении высоты установки навесных шкафов решающим фактором является рост хозяйки кухни, поскольку она должна без труда доставать до верхних полок. Для женщин с ростом до 160 см настенные шкафчики крепятся на расстоянии 165 — 170 см от пола. Дамам среднего роста комфортнее пользоваться гарнитуром, если его верхний ряд расположен на высоте 185 см. Если хозяйка высокого роста (от 175 см), допускается размещение навесных шкафов в 200 см от пола. Во всех случаях имеется в виду верхняя граница гарнитура.
Оптимальная высота шкафа складывается из роста человека и 25 см сверху. Иногда шкафчики располагают так высоко, что дотянуться до них можно, только встав на стул. Обычно в таких местах хранят вещи, редко используемые в быту.
Читайте также инструкцию по навешиванию кухонных шкафов.
Мебельная компания Valcucine изготавливает эргономичные кухни
Пояснения к картинке от фабрики кухонной мебели Valcucine:
Основные правила и стандарты
Для правильного размещения мебели на кухонном пространстве есть специальные стандарты и правила. Следуя им, можно без лишних проблем удобно разместить кухонные шкафы и другие предметы мебели в пределах кухни. Так, согласно госстандарту, нужно вешать шкафы так, чтобы их нижний край располагался на уровне 135-140 см над напольным ярусом. Что касается нижних тумб, то их высота должна быть сбалансирована с ростом владельцев. Чаще всего данный параметр составляет около 90 см.
Между столешницей напольных шкафов и навесными шкафами расстояние должно составлять не менее 45-50 см. Рабочая зона кухонного пространства по стандартам должна иметь расстояние от 45 до 60 см. На таком участке должно оставаться достаточно места под различные бытовые приборы.
Не стоит оставлять слишком маленький запас, иначе человек будет биться головой при некоторых действиях. Если рост человека несколько выше среднего, то лучше сделать расстояние более 60 см.
Стоит отметить, что при слишком больших особенностях роста, например, очень низкий или высокий, кухонную мебель следует выбирать индивидуально под себя, как и расстояние между ней.
Расстояние от пола
Нижняя кромка шкафчиков располагается, согласно универсальному правилу, ниже, чем уровень плеча на 6 см. Конечно, хорошо, если сразу учесть средний показатель для всех взрослых, которые будут хозяйничать на кухне.
При отсутствии нижнего яруса шкафов будет удобно, если нижняя кромка подвесных предметов мебели будет располагаться на высоте 135 см. Это дает возможность спокойно доставать все необходимое даже с верхних полок. К примеру, человеку ростом в 165 см будет удобно повесить шкаф на высоту 130-190 см. В том случае, если предполагается постоянное использование стула или специальной маленькой лесенки, то можно размещать шкафчики на уровне 190-240 см.
Важно учесть, что шкафы должны висеть так, чтобы видимость была оптимальной и самой лучшей. Для рассмотренного в примере роста это будет отметка на высоте 140 и 165 см. В данном случае разделителем между ограниченной зоной и зоной самой меньшей доступности станет высота, равная 180 см.
Верхняя граница
Верхний уровень навесных шкафчиков сильно зависит от высоты потолков в зоне кухни. Как правило, чем более высокий потолок, тем более широкий фартук делается, следовательно, шкафы размещаются выше. Конечно, следует учитывать, что шкафы под потолком обладают рядом недостатков.
- Сложная реализация монтажа. Далеко не все потолки и параметры мебели позволяют размещать шкафы на самой большой высоте.
- При высоте потолков от 2,5 метра доступ к наиболее верхним полочкам может быть затруднительным.
- Более высокая стоимость.
При всех этих недостатках хозяйки очень часто отдают предпочтение верхним подвесным шкафам, так как они приносят практичность в любое кухонное пространство. На любой кухне есть такие предметы, которыми пользуются редко, но все-таки пользуются. Именно их нередко и отправляют на полки, к которым сложнее всего добраться.
К тому же такие шкафы любят за то, что они позволяют убрать множество лишних вещей с глаз.
Оформлять стены при помощи шкафов на них – сплошное удовольствие. Особенно если учесть разнообразие цветов их фасадов. Можно даже сделать потолки визуально выше, если правильно подобрать навесные шкафы. Однако стоит помнить, что до полок на уровне менее 2,1 метра добираться значительно проще.
При выборе верхней границы проще всего опираться на расстояние между столешницей и подвесным шкафом. А также оно еще зависит от высоты самих секций. Даже высокие люди не слишком жалуют шкафы, которые слишком высоко повешены, так как они неудобны в эксплуатации.
Рекомендуется перед тем, как покупать мебель, отметить на стене максимально предельное верхнее положение шкафа. Согласно стандартам, оно делается на 19-20 см больше, чем средний или самый высокий показатель роста взрослых людей. Идеальная высота верхнего уровня шкафа не имеет зависимости от правила треугольника или формы кухонного пространства.
Примеры
Давайте рассмотрим несколько простых примеров правильно подобранной высоты навесных шкафов.
Вот так можно замерить все необходимое, отталкиваясь от длины рук. Ведь это очень удобно, когда все под руками. Обратите внимание, что рост человека на данной картинке – 160-170 см. Пусть вас не пугает название «мертвая зона», это место вполне может быть использовано под редко используемую утварь.
Если вы не планируете располагать на кухонной поверхности много приборов и не пользуетесь приборами, выделяющими пар при работе, вы вполне можете повесить шкафчики на минимальную высоту от рабочей поверхности. Это даст вам возможность пользоваться верхними полками с максимальным удобством. Обратите внимание, что на данной картинке человек высокого роста – 180-190 см. И нижний стол отрегулирован соответственно.
На приведенных фотографиях идеально удобное расположение шкафчиков. Руки свободно ложатся на рабочую поверхность нижнего стола, а нижняя полка верхнего шкафа как раз на уровне глаз. Не прилагая особых усилий можно достать вещи и с верхних полок. Все необходимое прекрасно помещается на рабочем столе. И от электрического чайника до нижней стенки навесного шкафа достаточно места, чтобы пар не испортил поверхность.
На последних фотографиях не указан рост женщин, да это и не важно. Вне зависимости от вашего роста, вы сможете подобрать удобную именно вам высоту, отрегулировав нижние шкафы и расстояние рабочей поверхности до навесного шкафа. Просто учитывайте все основные факторы.
Что учитывать при выборе высоты?
При выборе высоты для навесных шкафов на кухне стоит учитывать множество факторов. Однако если сделать все правильно, то кухонное пространство будет удобным и практичным. Перед монтажом и подбором высоты стоит учесть:
- рост того, кто больше других проводит времени на кухне, а в идеале – всей семьи;
- наличие свободного пространства под шкафами;
- другие предметы кухонной мебели и их конфигурацию, размеры.
Довольно часто пространство под висящими шкафами не остается пустовать. Его занимают или предметами мебели, или какими-либо бытовыми приборами. Конечно, чаще всего под ними размещают столешницу, и с этим надо считаться. Ведь на ней будут располагаться оборудование и посуда, поэтому стоит сделать так, чтобы нижняя граница шкафа не мешала нормальной работе.
Слишком высокий уровень подвесных шкафов также может быть неудобным, так как он должен быть легкодоступным.
Рост человека
Основной фактор при выборе высоты подвесных шкафов – человеческий рост. Ведь оттого, насколько удобно работать на кухне, зависит не только комфорт, но и качество готовой еды. Чем проще работается на кухне, тем больше будет желания готовить. Многие хозяйки не любят процесс готовки только за то, что им приходится много наклоняться, взбираться на табуретки, уклоняться от раскрываемых дверок. В итоге возможность получения травм возрастает, а вот желание готовить – наоборот.
По мнению экспертов, для человека ростом 175 см нижняя граница шкафа должна располагаться на высоте 150-155 см от пола. Для хозяек ростом более 175 см данный показатель должен составлять 160 см, а при росте более 185 см уместно размещение на уровне 165-170 см от пола.
Важно при этом учитывать и высоту навесного шкафа. Лучше всего, если высота верхней полки будет находиться на расстоянии, равном росту человека плюс 20 см. Что касается нижней полки, то ее лучше всего размещать на уровне глаз.
Средний рост всех членов семьи целесообразно учитывать, если на кухне готовят периодически каждый из них. Если готовит кто-то один, то достаточно за основу отсчета взять его рост. Для людей среднего роста оптимальным является расположение навесной мебели на высоте 140-150 см.
При выборе высоты, на которой будут монтироваться шкафы, лучше всего придерживаться пары несложных правил:
- высота, на которой находятся подвесные кухонные шкафы, должна позволять хозяйке без подставок и лишних усилий дотягиваться до верхней полки;
- высоту для навесных шкафов на кухню стоит подбирать так, чтобы встав с ними рядом, хозяйка могла видеть, не поднимая головы, предметы, стоящие, на верхней полке.
Габариты мебели
Чтобы избежать многих проблем, стоит выбирать стандартный гарнитур. Так, типовые размеры навесных шкафов для кухонного пространства выглядят следующим образом:
- высота варьируется от 35 до 70 см;
- глубина составляет от 25 до 45 см;
- ширина находится в диапазоне от 15 до 80 см.
Как правило, стандартный показатель высоты нижнего яруса достигает 90 см. В него входят высота цоколя и каркаса, а также толщина столешницы. Что касается глубины нижних шкафов, то она в среднем составляет 60 см (плюс-минус 10 см). Допускается, чтобы рабочая поверхность столешницы выступала за край тумбы примерно на 4 см.
Для подбора нижней границы, на которой будет располагаться навесная конструкция, важно учитывать все вышеперечисленные параметры.
Стоит заметить, что верхние шкафчики выравниваются в одну линию по верхнему уровню, вне зависимости от величины их высоты.
Нижняя полка шкафов должна располагаться на высоте 85 см над столешницей. Для шкафов высотой от 70 см выбирают расстояние от нижней кромки до рабочей поверхности, равное 60 см. Что касается второй и третьей полок в навесных шкафах, то они должны располагаться на наиболее подходящей и наибольшей высоте соответственно.
Зависимость от вытяжки и плиты
Устанавливать над плитой навесные шкафы нельзя. Однако их вполне можно монтировать над вытяжкой. Причем данное решение для многих интерьеров успело стать классикой.
При монтаже расстояние от варочной поверхности до шкафов должно составлять не менее 60-65 см. Вряд ли в данном случае удастся установить шкафчики на уровне соседних секций. Однако надо еще учесть, что встречаются материалы, которые при нагревании способны выделять опасные вещества, как, например, ДСП. На расстоянии 75 см от газовой плиты и 65 см от электрической рекомендуется устанавливать вытяжку, а уже над ней крепятся навесные шкафы. Термовытяжка даже имеет специальные варианты форм для более удобного размещения предметов кухонной мебели.
Что делать, если модули разноуровневые
Дизайн кухонного гарнитура иногда предполагает разноуровневые модули. Такая мебель смотрится нестандартно и изысканно. В этом случае ориентируются на нижние полки. Здесь сохраняется правило, согласно которому дотянуться до них не составит сложности.
Разнообразие высот
Более длинные предметы вешают выше, с таким расчетом, чтобы нижняя полка была доступна. Иногда мебельные модули можно повесить на одном уровне по высоте.
Тогда длинные секции располагают ниже 45 см от столешницы.
В этом нет ничего страшного. Главное – спланировать пространство так, чтобы под этими секциями ничего не размещалось.
Планирование играет решающую роль в размещении кухонной утвари. В хорошо доступных шкафах и ящиках располагают предметы, которыми пользуются часто. На верхние полки убирают вещи, которые нужны редко.
В деревне
Влияние роста хозяйки на высоту размещения мебели
Расстояние между столешницей и верхними навесными шкафами на кухне тесно связано с ростом хозяйки:
- при росте дамы 160 см минимальная высота над полом составляет 170 см;
- при росте 165–170 см это расстояние увеличивается до 180 см;
- при росте выше 175 высота монтажа может достигать 200 см.
При измерении высоты монтажа навесных шкафов можно рекомендовать к росту женщины прибавлять 20 см. Это будет оптимальная высота от пола. Но не нужно забывать о работе бытовой техники. Расстояние между столешницей и верхним рядом мебели нельзя делать меньше 45 см.
Утром
Меньшая высота не позволит разместить бытовые приборы. Расстояние от столешницы до верхнего ящика нежелательно устанавливать больше 60 см. Высоко расположенные шкафчики снижают функциональность мебели.
На какой высоте вешать кухонные шкафы —
На какой высоте вешать кухонные шкафы
Содержание статьи:
Вступление
Вопрос, на какой высоте вешать кухонные шкафы, может показаться риторическим. Ведь всем известна классическая высота кухонных шкафов от столешницы в 600 мм. На самом деле эта высота работает не для всех шкафов и нужно объяснить, почему принята именно эта высота кухонных шкафов над столешницей.
На заметку. Говоря о мебели для квартиры и дома, всегда приходится говорить и думать про её сборку. Не всегда это можно сделать самостоятельно и в этом случае приходится искать и нанимать профессионалов. Если у вас возникла необходимость собрать шкаф-купе вам на этот сайт https://gm-msk.ru/uslugi-plotnika/shkafy-kupe/sborka-shkafa-kupe/. Быстрая и качественная сборка шкафов вам гарантированна.
Понятие эргономика для кухни
Эргономика это не понятие, а наука, изучающая повседневное взаимодействие человека предметами окружающей среды для выявления оптимальных условий жизни.
Проще говоря, эргономика может подсказать, как расположить возле себя предметы, в частности мебель, чтобы было удобно ими пользоваться, а значит удобнее жить и/или выполнять свою работу.
На кухне данные эргономики особенно важны, потому что кухня в квартире это место, где человеку приходится не только отдыхать, но работать – готовить пищу.
Данные, которые предоставляет эргономика, по расположению предметов интерьера, расстояний установки мебели, высоте кухонных шкафов над столешницей и т.п. не являются догмами и должны применяться с учётом удобства людей, которые в этой среде будут жить и работать.
Это значит, что высота навеса кухонных шкафов для невысоких людей, может не подойти для людей с большим ростом или наоборот.
На какой высоте вешать кухонные шкафы
На вопрос статьи, на какой высоте вешать кухонные шкафы можно ответить просто, чтобы было удобно ставить в них и забирать из них, то, что в них хранится. Это так, но всё-таки, что значит с точки зрения науки, что такое удобно. Сформулирую два правила, которые мне кажутся разумными.
Правило 1
Высота навески кухонных шкафов должна быть такой, чтобы самый маленький (взрослый) человек дома мог без усилий и подставок, дотянуться до верхней полки любого рабочего шкафа (полки).
Замечу, что в ГОСТ 13025.1-85 «Мебель бытовая. Функциональные размеры отделений для хранения» этот размер ограничен 1900 мм.
Не смотря на то, что этот ГОСТ относится к производителям мебели, мне кажется, высота 1900 мм, вполне разумна, как с точки зрения эргономики, так и здравого смысла. Правильная сборка и навески кухонной мебели, предполагает удобное пользование, и было бы странно навесить шкафы так, чтобы до верхних полок доставать с табуретки.
Возникает вопрос, почему выбрана высота до верхней полки, а не до верха навесных шкафов? Во-первых, верх шкафов не являются зонами хранения, во-вторых, на кухне могут быть шкафы декоративного назначения (шкаф для вытяжки), высота навеса которых не имеет отношения к эргономике.
Правило 2
Высота навески кухонных шкафов должна быть такой, чтобы «хозяйка», встав рядом с мебелью, видела, что стоит на верхней полке, не поднимая головы.Это правило спорное, но как вариант имеет отношение к удобству пользования. В эргономике важно, чтобы человек совершал, как можно меньше лишних движений и принимал меньше неестественных поз.
Например, слишком низкий напольный шкаф кухни, для высоких людей станет причиной усталости спины, а слишком высокий шкаф для невысоких людей, создаст проблемы в нарезке продуктов.
Как посчитать высоту навески шкафов
Давайте посчитаем высоту навески по приведенным выше правилам. Сначала рассчитаем максимум, взяв за максимум размер в ГОСТ – 1900 мм.
- Высота верхней полки 1900 мм;
- В стандартном навесном шкафу 600 мм, расстояние от верхней полки до верха шкафа 200 мм;
- Получаем, что низ навесного шкафа должен быть на высоте от пола: 1900+200–600=1500 мм. По ГОСТ это максимальная высота навески стандартных кухонных шкафов, которая в жизни не соблюдается.
Считаем высоту навеса кухонных шкафов от столешницы:
- 1500 мм – 850 мм (высота стандартных напольных шкафов) = 650 мм.
Получаем условно максимальную ширину кухонного фартука (расстояния между столешницей и навесным шкафом) 650 мм. Отсюда, стандартная, рекомендованная высота шкафов над столешницей 600 мм, о чём я сказал в начале статьи.
Но это стандарт, а для себя нужно посчитать самостоятельно на какой высоте вешать кухонные шкафы. Например, максимально удобную высоту шкафа над столешницей можно посчитать так:
Пример 1
- Мой рост 185 мм;
- Длина руки 2/5 роста=74 см;
- Размер головы 1/8 роста: 23 см;
- Высота верхней полки шкафа: 185 – 23 (голова) +74 (рука)=236 см;
- Высота низа кухонного шкафа: 2360+200(высота полки)–600 (высота шкафа)–920(высота высоких напольных шкафов для высоких людей)=1040 мм.
Вывод
Значит высота верха навеса кухонных шкафов 600 мм, для человека ростом 185 см, равна 1640 мм.
Пример 2
- Мой рост 160 мм;
- Длина руки 2/5 роста=64 см;
- Размер головы 1/8 роста: 20 см;
- Высота верхней полки шкафа: 160 – 20 +64= 204 см;
- Максимально удобная высота кухонного шкафа над столешницей: 204+20(высота верхней полки)–60 (высота шкафа)–85 (высота высоких напольных шкафов)= 79 см.
Вывод
Значит высота верха навеса кухонных шкафов 600 мм, для человека ростом 160 см, равна 1390 мм.
Так как рост всех людей пользующихся кухней в доме, не стандартный, то 1900 мм до верхней полки шкафа, подходит для удобного пользования людям, как небольшого, так и высокого роста.
Поэтому, стандарт высоты навесных шкафов над столешницей в 600 мм принимается рекомендованным.
Как низко можно навесить кухонный шкаф
В расчётах выше, я использовал стандартную высоту шкафов 600 мм. Но в продаже есть шкафы 900 мм. Как быть?
Есть минимальный рекомендованный размер кухонного фартука. Это 450 мм.
Здесь правило звучит так: Хозяйка не должна нагибаться или сильно сгибать руку, чтобы взять со стены фартука, какой либо навешанный предмет.
Это правило тоже разумно. Если каждый раз, чтобы взять со стены кухонную утварь придётся приседать или нагибаться, будет неудобно, а значит не эргономично.
Вывод общий
В статье я показал, на какой высоте вешать кухонные шкафы и доказал, что рекомендованные высоты 450 мм (минимум) и 600 мм (максимум) шкафов над столешницей имеет право на существование.
©remont-kuxni.ru
Еще статьи
Поделись статьей с друзьями:
ПохожееНа какой высоте вешают кухонные шкафы
Окончен ремонт кухни: стены поблескивают кафелем, а полы ламинатом. Наступило время расстановки мебели. И здесь очень важно учесть ряд факторов, от которых в дальнейшем будет зависеть комфорт пользования вашей кухней, ее функциональность и привлекательность. В нашей статье мы определимся с высотой расположения навесных ящиков, с методом их крепления и с основами правильного рационального размещения кухонной мебели в комнате.
Содержание:
- Рациональное размещение навесных шкафов
- На какой высоте вешать угловые кухонные шкафы
- Как располагать кухонные шкафы для посуды
- Основные советы при подвешивании шкафчиков
Рациональное размещение навесных шкафов
Необходимо сразу определиться, чем вы будете руководствоваться при решении вопроса, на какой высоте вешать кухонные шкафы: нормой или удобством.
Если первым, то здесь все просто. По нормативам навесные шкафы должны располагаться на высоте 0,45 – 0,55 м от рабочей поверхности стоячих шкафов. Это расстояние рассчитано из соображений удобства при расположении и работе с кухонными бытовыми приборами.
Пятидесяти сантиметров достаточно для того, чтобы, например, расположить на столе кухонный комбайн или мультиварку, и беспрепятственно пользоваться ею: открывать и закрывать крышку, погружать в нее продукты и т.д. Кроме того, пар из работающих электроприборов (чайника, мультиварки, пароварки и т.п.) не будет повреждать покрытие навесных шкафчиков.
Вроде бы все рассчитано правильно, но не учтен один момент: рост хозяйки кухни. Ведь та высота, которая удобна для невысокой хозяйки, абсолютно неприемлема для женщины высокого роста. А потому в этом случае следует руководствоваться принципами удобства и комфорта.
Исходя из них, навесные ящики необходимо размещать таким образом, чтобы нижняя полка располагалась на уровне глаз хозяйки.
Именно на ней принято хранить то, что должно быть под рукой, а потому доступ к этим вещам должен быть элементарным. В идеале, доступ к вышерасположенным полкам также должен быть удобным, без использования каких-либо дополнительных предметов: стульев, табуреток, подставок и т.д. Но это в идеале.
На деле, на маленьких кухнях в целях рационализации кухонного пространства обустраивают подвесные полки под потолок, чтобы вместить в них максимально возможное количество предметов. В данном случае абсолютно невозможно сделать комфортным доступ ко всем полкам, но максимально приблизиться к этому – основная задача дизайнеров.
На какой высоте вешать угловые кухонные шкафы
С угловыми кухонными шкафами ситуация немного другая. В случае с ними специалисты рекомендуют высоту над уровнем столешницы не снижать менее, чем до 60-65 см.
Это связано с тем, что глубина таких шкафов, как правило, больше, чем пристенных, а потому для удобства пользования ими необходимо, чтобы просвет между дном навесного ящика и столешницей стоящего была достаточно большой. Это обезопасит ваше пользование этими шкафами (вы не будете ударяться о край навесного ящика головой) и сделает пользованием им комфортным. В связи с этим и все навесные шкафы в кухне рекомендовано выравнивать по этому уровню.
Как располагать кухонные шкафы для посуды
Посуда – неотъемлемый атрибут любой кухни и у каждой хозяйки ее достаточно много. Как же и где лучше всего разместить кухонную утварь, чтобы она была под рукой, но не на глазах.
В данном случае на помощь придут:
- шкафы-витрины;
- серванты;
- навесные шкафчики со стеклянными дверками;
- угловые шкафы;
- буфеты.
Каждый из этих элементов кухонной мебели сослужит вам службу при хранении того или иного вида посуды. Например, для хранения кастрюль и сковородок больше всего подойдет угловой шкаф (как стоячий, так и навесной).
Такие шкафы очень вместительны и, как правило, не имеют прозрачных дверок, что поможет скрыть от глаз всю утварь.
Серванты и буфеты используются под хранение столового стекла и сервизов, которые смогут радовать своим внешним видом не только хозяев, но и их гостей.
Шкафы-витрины и навесные шкафчики позволяют существенно экономить пространство в кухне и выглядят при этом стильно и современно.
Основные советы при подвешивании шкафчиков
На какой высоте вешать уже понятно, осталось произвести работы по навешиванию шкафов.
В этом вам помогут наши советы:
- При навешивании шкафчиков (особенно тех, которые планируются под хранение посуды) необходимо использовать только высококачественные крепежные материалы.
- Не используйте дюбеля или деревянные чопики (это прошлый век), а примените анкерные болты (это надежно!).
- Не следует вешать шкафы на гипсокартонную стену.
- При покупке кухонного гарнитура обязательно обращайте внимание не только на ширину и длину столешниц, но и на высоту навесных шкафов (вдруг высоты вашего потолка не хватит, чтобы их разместить).
Помните, что только правильный монтаж навесных шкафов исключит вероятность их обрыва.
На какой высоте вешать кухонные шкафы. Инструктаж
Содержание статьи:
В большинстве квартир кухонные навесные шкафчики решают вопрос компактного и удобного хранения различных кухонных вещей. Навесные шкафчики могут компактно вмещать в себя даже бытовую технику, тем самым экономя остальное свободное место на кухне. Но перед установкой кухонного гарнитура всегда нужно знать, на какой высоте вешать кухонные шкафы для максимального удобства.
Важные нюансы при вешании кухонных шкафов
Перед прикреплением шкафов к стене нужно учитывать следующие важные нюансы:
- Рост своих домочадцев и собственный рост
- Высоту кухни
- Высоту самих шкафов
- Расстояние между рабочей или разделочной поверхностью и навесными шкафами
- Для чего будут использоваться навесные шкафы.
Рост хозяйки и других членов семьи является самым важным нюансом, так как именно от него будет зависеть удобство расположения и использования шкафов. В этом случае лучше всего вешать шкафы на уровне глаз и так, чтобы вы могли свободно дотягиваться рукой к любой полке. Чтобы точно не прогадать, на какую высоту повесить кухонные шкафы, помните, что верхняя точка шкафа должна быть не выше роста человека, чем на 20-25 см. Если рост достигает отметки 175-178 см, тогда нижняя точка навесного шкафа не должна быть ниже 155 см от пола. Для людей, у которых рост достигает показателей 185 см, нижняя точка шкафа не должна быть ниже 160 см от пола. Если же рост превышает 200 см, то низ кухонного шкафа должен быть не ниже 175 см от пола.
Низкая высота кухни может не позволить приобрести высокие шкафы, поэтому этот фактор также должен быть обязательно учтен. Благодаря современным конструкциям в навесных шкафах их можно вешать на самой удобной высоте, учитывая при этом высоту потолков на кухне. Обычно в комплектацию кухонной мебели, где есть навесные шкафы, входят крепления под названием крючки и навески. Они крепятся к задней стенке шкафчика и затем цепляются за прикрепленную к стене планку.
Если приобретенные кухонные навесные шкафы имеют большую высоту, то их нужно крепить так, чтобы они позволяли оставить расстояние между столешницей и навесным изделием. Но в этом случае они могут располагаться очень высоко, что для хозяйки будет неудобно. В таком случае либо покупайте шкафы с меньшей высотой, либо сделайте выбор для себя, что важнее – расстояние между шкафом и столешницей или удобное и низкое расположение шкафов.
Самым приемлемым и удобным расстоянием между столешницей или рабочей поверхностью и навесным шкафом считается 55-60 см. Его будет вполне достаточно для установления различной бытовой техники – микроволновой печи, соковыжималки, электрической мясорубки и т. д.
Иногда навесные шкафы приобретаются для хранения кухонной техники или посуды, которая используется редко. В таком случае шкафы можно вешать высоко, чтобы верхние полки служили хранилищем для редко используемых вещей. А вот нижние полки могут быть удобными в использовании и выступать в качестве хранения часто используемых продуктов.
Порядок выполнения действию вешания кухонного шкафа
Чтобы знать, как правильно повесить кухонные шкафы, следуйте нижеописанной пошаговой инструкции, которая используется чаще всего:
- Сначала определите верхнюю границу шкафа, которая будет находиться на стене. Для этого возьмите во внимание собственный рост и сделайте наметки на 20-25 см выше. Нанесите карандашом горизонтальную линию на всю длину шкафов для удобства. Для ровного нанесения линии можете использовать водяной уровень. Он поможет с минимальной погрешностью сделать ровное начертание.
- Далее сделайте точку, которая позже станет отверстием под крепеж.
- Просверлите отверстие и установите крепеж.
- Скобы или петли, которые входят в комплектацию к навесным шкафам, с помощью саморезов прикрутите к задней наружной стенке шкафа.
- Одной петлей повесьте шкаф на крепеж и с помощью уровня выровняйте его. После выравнивания сделайте карандашом вторую пометку для крепежа и просверлите отверстие для него.
- Для всех остальных шкафов проделайте всё то же самое.
- Все повешенные шкафы между собой соединяются с использованием шурупов. Нужно отметить, что отверстия для шурупов должны быть просверлены в изделии заранее.
- Все шкафчики должны висеть на одном уровне, проверьте это.
В некоторых комплектах в составе есть декоративный карниз, который можно прикрутить к верхней части шкафов с помощью небольших шурупов. После правильного развешивания кухонных шкафов в них вставляются полочки, дверцы проверяются на исправность и плотность закрывания, а также на провисание. Если дверцы работают некорректно, то с помощью регулировочных винтов легко устраняются все неполадки.
Еще один простой способ
Еще правильно повесить кухонные шкафы поможет монтажная рейка. Она значительно облегчает процесс навешивания шкафчиков, потому что сначала на стену крепится именно сама рейка, а уж затем на неё вешаются шкафчики.
Нижеописанная небольшая пошаговая инструкция расскажет о том, на каком уровне вешать кухонные шкафы и какую высоту для них нужно подбирать:
- Первым этапом будет проведение подготовительной работы – это выравнивание поверхности стены, где будет расположен шкаф, завершение процесса электромонтажных работ (подключение всех необходимых светильников и розеток).
- Далее вам необходимо определить высоту вешания шкафов, которая для вас будет наиболее оптимальной. Встаньте возле стены и отметьте для себя уровень глаз. Если для вас важно расстояние между навесным шкафом и столешницей, то вешайте шкаф так, чтобы расстояние между этой мебелью было не менее 55 см.
- Далее на стене сделайте пометки на стене для крепежей. Вместе с этим желательно сделать очертание самого шкафа на стене для большего удобства.
- Просверлите отверстия для крепежей и установите фурнитуру для монтирования крепежной рейки.
Совет! Будьте бдительны при установке крепежной рейки, то есть нужно внимательно следить за отсутствием проводки на месте её крепления.
- Монтажная рейка в дальнейшем нужна для прикрепления к ней навесных шкафов, в которых пока еще не установлены полочки и фасады.
- Для ровного объединения шкафов друг с другом используют струбцины. Для большей надежности можно воспользоваться прокладками, которые называются деревянными колышками.
- Далее вам следует сделать отверстия для стяжки. Чтобы избежать сколов, сначала воспользуйтесь тонким сверлом, а затем просверлите это же отверстие сверлом потолще. Скрепите навесные шкафы в одну единую конструкцию.
- Работа почти завершена, вам остается лишь повесить дверцы на фасады и выровнять их расположение. Для этого понадобятся регулировочные винты.
У второго способа крепления навесных шкафов есть свои преимущества и недостатки. К преимуществам можно отнести:
- Самостоятельное выполнение работы.
- Передвижение и выравнивание шкафов с помощью крутящихся винтов.
- Дополнительное укрепление конструкции с помощью дополнительных реек и винтов.
- С помощью монтажной рейки процедура навешивания шкафов значительно ускоряется, нежели в первом варианте.
К недостаткам относятся следующие моменты:
- Ценовая категория. Комплекты со всеми деталями стоят значительно дороже обыкновенного набора с петлями.
- Между стеной и навесными шкафами останется расстояние.
Стоит еще также учитывать глубину шкафов, так как большая глубина изделия будет требовать большего расстояние между шкафом и рабочей поверхностью. Помните еще также о том, что все крепления должны быть качественно вмонтированы как в кухонный навесной шкаф, так и в саму стену во избежание падения. Вместо обычных дюбелей можно использовать анкерные болты, которые имеют большую прочность. Это позволит полноценно наполнять шкафы. Если на стене есть толстый слой штукатурки, то поставьте шину. С её монтированием, конечно, придется сложно, но такая конструкция будет максимально надежной.
Не все стандартные комплекты кухонной мебели с навесными шкафами могут подойти именно для вашей кухни. Поэтому перед приобретением шкафов измерьте высоту потолков и свой рост и только после этого подбирайте шкафы.
Дать окончательный и максимально точный ответ на вопрос: на какой высоте вешать кухонные шкафы не сможет ни один инженер, так как каждый случай индивидуален, потому что нужно учитывать множество факторов, которые описаны выше в этой статье.
Поделиться с друзьями:На какой высоте вешать кухонные шкафы
Выше рабочей поверхности кухни обычно располагается длинный ряд верхних шкафчиков. При использовании нижних полочек верхнего яруса проблем возникать не должно, однако с верхними взаимодействовать труднее. Невысоким людям часто приходится становиться на стул, чтобы достать предмет с верхней полки. Тем не менее, грамотное планирование этого участка кухни позволит избежать подобных неудобств. Если правильно рассчитать высоту, то для невысокой хозяйки труднодоступными будут только предметы около задней стенки самой верхней полочки. Во многих странах также разработаны системы стандартов относительно того, на какой высоте вешать кухонные шкафы. Они формировались не один год и учитывают разные особенности кухонных помещений. Небольшую высоту самих верхних шкафчиков можно компенсировать. В этом плане пригодятся глубокие варианты верхних секций и вместительные нижние тумбы. Открытое хранение между верхом гарнитура и потолком — еще одна альтернатива высоким навесам.
Основные правила и стандарты определения высоты крепления
Под высотой размещения навесного шкафа подразумевается 2 показателя: расстояние от пола до нижней полки и верхний уровень размещения. В ГОСТах имеются точные рекомендации, однако подбирать параметры самостоятельно легче. Строительные стандарты отличались в разное время, поэтому придется «считаться» с особенностями помещений, в первую очередь с высотой потолка. Принимая решение по поводу высоты размещения кухонных шкафов, следует учитывать 3 основных фактора.
Первым делом берется во внимание назначение тумб: в них могут размещаться специальные модули. Второй момент — местонахождение: над нижним ярусом или над свободным пространством. Однако все эти расчеты бесполезны, если не учесть рост человека, занимающегося приготовлением еды. С точки зрения дизайна, проще устанавливать стандартную мебель — она удачно впишется в пространство.
Размеры и высота нижних шкафов
Госстандарт предусматривает высоту размещения нижнего края навесных шкафов на уровне 135—150 см, если они крепятся над напольным ярусом. Нижние тумбы всегда устанавливают вровень, а их высота согласовывается с ростом хозяев. Обычно результат получается около 85—95 см. Расстояние между столешницей нижнего яруса и нижним краем верхнего в подавляющем большинстве случаев находится в пределах 45—60 см, причем оставлять менее 45 см недопустимо. Этот интервал (45—60 см) — нормальное расстояние для фартука рабочей зоны кухни. На данном участке должно найтись место для бытовой техники вроде мультиварки, микроволновки, кухонного комбайна. Если запас к нижнему ряду слишком маленький, то человек может ударяться головой при мытье посуды. Для удобства высокорослых расстояние может быть больше 60 см. В случае, если рост владельцев очень высокий, то и нижний и верхний ряды мебели покупаются значительно выше.
Стандартные габариты нижних шкафов:
- Высота — 80—95 см.
- Глубина — 50—70 см.
- Ширина (одной секции) — 35—80 см. Однако есть узкие варианты, например, бутылочницы.
Чем глубже секции напольного гарнитура, тем ниже нужно размещать верхний.
Высота от пола
Независимо от того, есть нижний ярус шкафчиков или нет, действует универсальное правило размещения нижней кромки навесных шкафов — она должна находиться ниже уровня плеча примерно на 5—7 см. В данном случае имеет смысл рассчитывать средний показатель у всех взрослых. Если нижний ярус отсутствует, то высота нижней кромки на уровне 130—135 см позволит без препятствий доставать принадлежности с верхних полок. Подсчитано, что хозяйке среднего роста (160—170 см) в стоячем положении будет удобно использовать шкафчик на высоте 1300—1900 мм. Если воспользоваться стулом — ей станет полностью доступен ящик на уровне 1900—2400 мм. Высоту размещения можно согласовывать с оптимальной и наилучшей видимостью. Для хозяйки с вышеуказанными параметрами это 140 и 165 см соответственно. Для нее же высота около 180 см разделяет зоны ограниченной (ниже) и наименьшей доступности (выше).
Верхняя граница размещения шкафа
Отталкиваются прежде всего от расстояния между навесной конструкцией и столешницей. В остальном все зависит от высоты секций. Однако же следует изначально подыскивать варианты для оптимального положения по верхней границе. Нет никакой потребности в полочках на высоте от 210—220 см — даже для высоких хозяек они будут неудобными. На кухнях с потолком ниже 2,6—2,7 м высокое размещение гарнитура помешает обустройству верхней зоны, если такое планировалось. В любом случае перед покупкой мебели на стене лучше нарисовать отметки максимально допустимой высоты вверху. Она должна находиться на 20—25 см выше роста самого высокого члена семьи или же среднего роста взрослых. Показатель идеальной высоты верхнего края шкафов никак не зависит от соблюдения правила треугольника или конфигурации кухни, будь то П-образная, угловая, линейная или двухрядная.
Важные нюансы, которые стоит учитывать при выборе высоты
Важными аспектами для определения высоты являются:
- рост взрослых;
- размеры верхних модулей;
- габариты нижних тумбочек;
- местонахождение варочной плиты.
От габаритов мебельных элементов приходится отталкиваться в первую очередь, именно поэтому покупать их следует после проведения предварительных расчетов относительно возможного местоположения и удобства для членов семьи. Прямо на торговой точке можно проверить эргономичность стенки и выбрать конфигурацию полочек. Самая верхняя из них в идеале должна быть доступной для всех взрослых и как минимум для наиболее высоких членов семьи. Важно определиться с идеальной высотой кухонного фартука. Если ничто не мешает удобно работать с мойкой, разделочной поверхностью и варочной панелью, то можно оставить на этот элемент всего 45 см. Данный вариант приемлем даже для высоких людей. Не следует также забывать о вместительности обоих рядов гарнитура, а тем более «жертвовать» ею ради доступности верхних полочек.
Размеры шкафов
Типовые параметры навесных шкафчиков кухонной стенки находятся в таких пределах:
- высота — 35—70 см;
- ширина — 15—80 см;
- глубина — 25—45 см.
Высота размещения навесного яруса зависит от размеров секций. И это касается не только верхних, но и нижних элементов гарнитура. Стандартная высота нижнего яруса равна 80—95 см и состоит из высоты цоколя, каркаса и толщины столешницы. Глубина нижних шкафчиков обычно составляет 55—60 см, но может быть и на 10 см меньше или больше. Столешница выступает за край тумб на 3—5 см. Нижняя граница размещения навесной конструкции подбирается с учетом вышеперечисленных особенностей. Что касается самих верхних шкафчиков, то независимо от высоты, их принято выравнивать в линию по верхнему краю. Нежелательно, чтобы нижняя полка коротких ящиков была выше, чем 80—90 см над столешницей. Тумбы высотой 70 см вешают так, чтобы нижняя кромка была отдалена от столешницы не больше чем на 65 см, причем 55 см — удобный вариант для большинства людей. Вторая и третья полочки должны находиться на оптимальной и максимальной высоте расположения соответственно.
Зависимость от вытяжки и плиты
Над самой плитой шкафчики монтировать не рекомендуется, однако это можно делать над вытяжкой. Данное решение в интерьере уже успело стать классическим. При установке следует учитывать минимально допустимую высоту от варочной поверхности — 60 см. Повесить шкафчик вровень с соседними секциями, скорее всего, не получится. Однако это еще не все трудности — при нагревании некоторые материалы выделяют опасные соединения. Обработанное дерево (например, ДСП) от температурного воздействия может испускать формальдегид и фенолы. Высота размещения зависит и от типа плиты. Над электрической рекомендуется оставлять запас от 65—70 см, а над газовой — минимум 75—80 см. На таком уровне желательно как раз разместить вытяжку, а чуть выше — шкафчики. Для размещения мебельных модулей над термовытяжкой предусмотрены специальные варианты ее конфигурации.
Шкафчики над рабочей поверхностью вытяжки практически не увеличивают полезное пространство — обычно в них мало места.
Учитываем рост человека
Обязательно учитывается рост взрослых хозяев. Измеряем именно средний показатель. При этом если на кухне регулярно готовит только один человек — то нет необходимости учитывать средний рост. Но все же чем ниже полочки, тем легче их эксплуатировать, вне зависимости от того, с какой целью они используются. Итак, если средний рост взрослых получился ниже 178 см — нижнюю кромку шкафчиков размещаем в 155 см от пола. При показателе в пределах 178—185 см секции вешаются на уровне 160 см. При большем среднем росте низ модулей должен находиться в коридоре 160—175 см, пропорционально полученному результату. Желательно, чтобы верхние полочки располагались не выше 20—25 см над головой самого низкого из взрослых. Полки выше 210 см от пола являются нефункциональными. Минимально низкое размещение навесного яруса мебели — 135 см, однако некоторые рекомендуют ставить их не ниже 145—150 см для людей среднего роста.
Способы крепления навесных шкафов
Всего есть 2 способа:
- На монтажной планке.
- На петлях.
Чтобы повесить шкафчики, необходимо не только определить оптимальную высоту, но и сделать правильное и надежное крепление. Фиксирующие детали должны рассчитываться на большой вес. Важны также правильная технология и последовательность действий — для проверки функциональности, сборки и регулирования до готового состояния. Установку правильно начинать с угловой секции или от стены, в которую должна упираться конструкция. Если используется способ крепления на шину (планку), иное направление установки невозможно в принципе. Игнорировать данное правило нельзя и при монтаже на петли. В противном случае будут проблемы с выравниванием высоты секций. Расстояния между ними окажутся неодинаковыми или неправильными. Могут появиться ненужные зазоры. Кроме этого, можно «не рассчитать» расстояния и в итоге не найти места для еще одного шкафчика.
На монтажной планке
Это более современный метод крепления. При этом нагрузка распределяется равномерно по всей длине фасада. Данный тип монтажа оставляет возможность регулировать навесную конструкцию по высоте. Элементы устанавливаются поочередно, поэтому с задачей справится даже один человек. Работы необходимо проводить строго по определенному порядку. Сначала на стене отмечаются верхняя и нижняя границы расположения шкафчиков. Затем наносится разметка под планку. Далее сверлятся отверстия и фиксируется фурнитура для рейки. После этого устанавливается сама рейка и навешиваются элементы. Крепятся они сначала без полок и дверец. Монтировать шкафчики лучше вплотную — для этого используются специальные крепежные детали. В конце устанавливаются полочки и крепятся фасадные поверхности. Последние можно сразу же отрегулировать, если они немного наклонены в сторону.
Петли
На петли можно навесить шкафчик любой конфигурации. Этот способ удобен, в том числе для установки одиночных конструкций. Если же элементов много, то в работе понадобится уровень. В случае, если несколько ящиков были соединены, для установки потребуется работать вдвоем. Алгоритм действий данного способа и метода с монтажной планкой частично схожи. Однако в этом случае сверлится отверстие под дюбели. Понадобится зафиксировать петли на задних стенках шкафчиков (вверху). В качестве фиксирующих элементов лучше использовать саморезы. Сделать крепеж можно заранее. Секции монтируются на дюбели. Соседние модули лучше скреплять. Чтобы снизить вероятность образования сколов к минимуму, следует просверлить узкие отверстия под шурупы, а потом расширить их. Также можно прикладывать брус с другой стороны для уменьшения вибрации от сверления. Завершающий этап — установка полок и дверец.
Заключение
Чтобы выбрать оптимальную верхнюю и нижнюю границу установки навесной кухонной мебели, не обязательно обладать специальными знаниями или навыками. Хозяевам прежде всего следует отталкиваться от опыта предыдущих лет, выражающегося в ГОСТах с подробными рекомендациями и нормами. Определение нужной высоты на этом не заканчивается, ведь понадобится учесть индивидуальные факторы. Это и средний рост хозяев жилья, и габариты модулей, и приоритеты в размещении кухонной утвари. Наибольшая сложность заключается в потребности согласовывать расположение сразу 5 элементов: нижнего края навесного ряда, его верхней кромки, столешницы нижнего яруса, варочной поверхности, а также высоты фартука рабочей зоны. Сама установка выполняется каким-то из двух способов: на рейку или отдельные петли. Первый из них является более легким. Все действия следует производить без спешки и по общепринятому алгоритму.
Высота кухонных шкафов: как рассчитать правильно?
Кухня – самое притягательное место в квартире, где вечером за ужином собирается семья, где отвлекаешься от насущных проблем. И так хочется уюта. А чтобы его создать, нужно провести ремонт, расставить мебель. И здесь имеют важное значение некоторые моменты, напрямую влияющие на удобство кухни, ее функциональность.
Красивая уютная кухня с гарнитуром в современном стиле
Идеальная просторная кухня с вместительными напольными тумбами и без навесных модулей
В каждой кухне есть гарнитур, включающий и навесные шкафчики. Это удобно. Но нужно правильно подобрать высоту размещения шкафчиков, где в основном держат посуду, банки с крупами. Как видим, нагрузка большая. Необходимо обеспечить надежное крепление. Давайте разберемся, на какой высоте вешать кухонные шкафы.
Минимальная и максимальная высота размещения навесных шкафчиков относительно рабочей поверхности
Важные нюансы при вешании кухонных шкафов
Минимальная высота размещения вытяжки над кухонной плитой
Дабы в точности обозначить высоту для навеса мебели, надлежит иметь в виду следующие данные.
- Рост ваш и ваших родственников.
- Уровень потолков помещения.
- Высота мебели – конкретно шкафчиков.
- Предположительный интервал между рабочей зоной и навесными шкафами.
- Порядок эксплуатации шкафов.
Удобство использования кухонной мебели – первый признак приятного и функционального пользования
Какого роста вы и домочадцы – главная особенность, этот нюанс и влияет, как они будут размещены и насколько удобно ими пользоваться. В идеале высота должна соответствовать уровню глаз – это позволит с легкостью дотянуться до нужной полки. Дабы не ошибиться в расчетах, помните, что верхушка шкафчика должна превышать рост человека не больше чем на 20-25 см. Если рост составляет 175-178 см, нижний край шкафа располагают на уровне 1 м 55 см от пола. Если вы ростом 1 м 85 см, мебель вешают не ниже 1 м 60 см от уровня пола. Если вы выше двух метров, вешайте шкаф на высоту 1 м 75 см.
Кухня на заказ – прекрасная возможность создать такую мебель, которая соответствовала бы нашим потребностям и привычкам
Если потолки на кухне низкие, не стоит приобретать высокие шкафы – это учитывается в обязательном порядке. Современное устройство шкафов позволяет их крепить на той высоте, какая удобна, уровень потолков учитывается. В комплект кухонного гарнитура входят различные крючки и навески. Их фиксируют на тыльную сторону шкафа, потом мебель вешают на планку, закрепленную к стеновой перегородке.
Удобный вместительный стеллаж позволяет сделать навесные модули небольшими
Если получилось так, что навесная мебель достаточно высокая, ее необходимо монтировать так, чтобы между шкафами и рабочей зоной был промежуток. Одно но – они будут размещены высоко, хозяюшке будет сложно дотянуться до верхних полок, что вызовет определенный дискомфорт. Лучше приобретайте небольшие шкафы или определитесь – для вас превыше всего промежуток между верхней и нижней зоной или же комфортное размещение навесной мебели.
Следует обратить внимание на механизмы открывания дверей на верхних шкафах
Оптимальное расстояние между столешницей и навесными шкафами составляет 0,55-0,6 м. Здесь можно поставить бытовые приборы и другие предметы. Если шкафчики предназначены для атрибутов, редко применяющихся, повесьте их повыше, чтобы они использовались для хранения такого инвентаря. А на нижних полках лучше хранить те вещи, которыми вы постоянно пользуетесь.
Оптимальные размеры шкафов кухни
Стандартные размеры кухонной мебели
Все виды размеров, как навесных шкафов, так и напольных, должны рассматриваться индивидуально, так как есть кое-какие различия. Преимущественно это относится к глубине. В основном шкафы изготавливают по стандартным размерам. Если у вас средний рост, приемлемая высота напольной мебели должна составлять 85 см. В эту величину входят: подножие – 10 см, основа – 72 см, высота столешницы – 3 см. Для высоких женщин оптимальная высота – 90 см. Глубина навесных шкафов – 35-45 см, нижних – 70-90 см.
Высота передней части навесных шкафов – 70-90 см. Длина навесных элементов идентична длине нижних. Расстояние от нижней части навесных шкафов до столешницы должно составлять 45 см, это создаст комфортные условия при готовке. Высота между плитой и вытяжкой – 75 см. Ящики на кухне имеют высоту: маленькие – 14 см, средние – 28, большие – 35 см.
Типовой проект размещение мебели на кухне
Стандартные размеры для угловых шкафов: их боковые стенки размещаются параллельно кухонным стенам и составляют 60 см, боковые стенки, примыкающие к соседним ящикам, – 31,5 см. Ширина дверцы передней части – 38 см. Задняя часть – 16,5 см.
Места хранения в кухонных шкафчиках, доступ в которые должен быть свободным и удобным
Кухонные гарнитуры на заказ в основном изготавливают по стандартным размерам. Если все правильно скомпоновать, то и небольшая кухня визуально увеличится и будет выглядеть великолепно. Если пренебречь правилами при замере, то помещение потеряет привлекательность ввиду нагромождения предметами. Следуя стандартным размерам, получите стильную и комфортную кухню.
На какой высоте от рабочей поверхности вешать шкафы зависит от роста пользователей кухни и их пожеланий
Высота верхнего шкафа
Стандартная высота для кухонных навесных шкафчиков
На какой высоте вешать кухонные шкафы? Как уже говорилось, в основном кухонную мебель изготавливают по приемлемой величине. Имеются стандарты и для их расположения.
Рекомендуемая высота размещения шкафов для удобного использования
| Нижний край верхнего шкафчика | Находится над столешницей на высоте 45 см |
| Глубина верхних шкафчиков | 30 см – это меньше глубины напольных. Хотите встроить в навесный шкафчик микроволновку, глубину увеличивают до 40 см |
| Высота навесных шкафов | 70 см, наибольший размер – 90 см – 1 м 20 см |
Оптимальная высота верхней точки навесного шкафа от столешницы
Но иногда эти размеры не годятся. Тогда мебель изготавливают по замерам заказчика. Вытяжку устанавливают над плитой: если электрическая – на высоте 70-75 см, если газовая – 75-80 см. Духовку или микроволновку устанавливают так, чтобы хозяюшка пользовалась ими без затруднений. Не рекомендуется располагать различного рода технику в навесных модулях, в связи с этим их ширина варьируется от 15 до 80 см, а глубина составляет 37 см.
В случае с угловыми кухонными шкафчиками специалисты рекомендуют высоту над уровнем столешницы не снижать менее, чем до 60-65 см
Важно! Вся навесная мебель должна быть идентичной, именно эта особенность оживит интерьер кухни и сделает его идеальным.
Примерная высота расположения шкафов на кухне
Высота навесных шкафчиков – важная составляющая, она определяет, насколько кухня будет функциональна. Этот параметр учитывают еще при проектировании. При определении всех величин исходят из того, что вы собираетесь хранить.
Навесные ящики необходимо размещать таким образом, чтобы доступ к вышерасположенным полкам был удобным, без использования каких-либо дополнительных предметов
Размеры нижних шкафов
Стандартные размеры напольных шкафов
Какого роста хозяйка – это стоит учитывать при проектировании гарнитура. Это влияет на то, насколько удобно будет при пользовании модулями.
Правильная высота кухонных шкафов, проверенная удобством выполнения различных действий во время готовки
Все шкафы должны быть одинаковыми, только так интерьер по-настоящему станет гармоничным
Учитывая площадь помещения и ориентируясь на стандарты, обустройте кухню своей мечты, где вы будете с хорошим настроением заниматься приготовлением пищи, проводить время с друзьями и родными за чашечкой чая.
Видео: Стандартные размеры кухонной мебели.
ПредыдущаяКухняДелаем тумбу под мойку для кухни своими руками
СледующаяКухняКак произвести размеры кухонных шкафов (чертежи, советы).
На какой высоте вешать кухонные шкафы, как не допустить типичных ошибок
На кухне используются встроенные в стену ниши, стеллажи, напольные и навесные шкафы, служащие местом хранения для продуктов, мелкой бытовой техники, обеденных и чайных сервизов, кухонного текстиля. Где их хранить и как расставить – каждая хозяйка решает сама. То же касается и расстановки мебели. Но все равно мы задаемся вопросом, на какой высоте вешать кухонные шкафы, чтобы они не мешали нам, заставляя запрокидывать голову и, в то же время, было удобно доставать что-либо.
Монтажные рейки помогут правильно распределить нагрузку на стену.
Стандартом принято считать расстояние в 50-56 см между нижним напольным и верхним настенным шкафом. Оправдано ли это? Скорее всего, нет. Самое важное правило – первая полочка навесного шкафа должна находиться на уровне глаз – ведь то, что мы чаще всего используем, лежит именно на ней – от специй и тарелок до кухонных приборов и продуктов. Далее уровень шкафчика зависит от его высоты – сколько в нем всего полок: две, три или все четыре.
Удобство – важный этап в размещении кухонных шкафов
Уровень навесных шкафов должен определяться не какими-то стандартами и общепринятыми параметрами, а ростом хозяйки домашнего очага. Второй момент, который нужно учитывать – это высота и глубина напольного шкафчика и столешницы. Чем они шире, тем меньшим должно быть расстояние от столешницы до навесного шкафа, поскольку хозяйке придется тянуться к дверце.
На какой высоте вешаются кухонные шкафы? Есть стандарт, он равен 50 см. Но откуда он взялся? Конечно, проще доставать посуду или продукты, если шкаф почти стоит на столешнице. Но удобно ли? Для этого существует длинный пенал.
Рекомендуемая высота размещения шкафов
Зазор в 50 см – это та высота, позволяющая не только расставить в рабочей зоне кухонный комбайн, мультиварку, соковыжималку, электрочайник, кофеварку и прочую технику, но и пользоваться ею с комфортом (вам же придется открывать тот же чайник или мультиварку). К тому же это убережет дно верхнего шкафа от порчи – горячий пар может испортить мебель, если та висит слишком низко.
Прежде чем решить, на какой высоте вешать кухонные шкафы, тщательно все продумайте. Перед вами стоит непростая задача.
- Хозяйка в первую очередь должна без всяких табуреток доставать до полок в шкафу и их содержимого (это в идеале).
- Во-вторых, шкафы не должны заслонять вентиляцию. Хорошо бы, чтобы и трубы шли не сквозь шкафы, а выше.
- В-третьих, он не должны портить интерьер кухни. Вы удивитесь, но погрешность в 10-20 см может свести на нет усилия дизайнера, поэтому расположением верхних отделов лучше заниматься вдвоем – один держит, другой смотрит и оценивает.
- Ну, и наконец, крепить монтажную планку или вбивать крючки нужно надежно, чтобы мебель под тяжестью наполнителя не рухнула вниз на голову хозяйки или трапезничающей семьи.
Рекомендуемая высота размещения шкафов
И все же, какую высоту выбрать? Интернет-ресурсы, мебельщики, сборщики мебели утверждают, что расчет уровня нижнего края навесного шкафа ведется так: высота основания + высота напольного шкафа + 50-56 см (см. так же «Размеры кухонных шкафов: выбираем оптимальный размер»).
А что делать, если шкаф планируется только на стене. В любом случае определяющим параметром будет служить рост хозяйки кухни – ей должно быть не сложно дотягиваться к шкафу, даже к самой верхней полки. Так, для миниатюрных дам ростом до 160 см высота шкафа над уровнем пола будет максимум 165-175 см. Если ваш рост от 160 см до 175 см – то шкаф вешается на расстоянии 185 см, для высоких хозяев (от 175 см и выше) – 200 см. И имеется ввиду уровень верха в настенном шкафу. Если брать во внимание нижнюю границу навесной мебели, то она должна располагаться на высоте 140 см, 150 см и 160 см соответственно.
Минимальная высота размещения над кухонной плитой
Заметна тенденция, что высота шкафа равна росту человека + 20-25 см. Это и есть оптимальный параметр. Конечно, если шкаф очень высокий (так требует интерьер кухни), то так или иначе придется пользоваться подставками или табуреткой, чтобы достать необходимое с верхней полки. Тогда рассчитываем высоту по нормативам ГОСТа.
Иногда шкафы намеренно вешают очень высоко, даже выше холодильника. Это удобно в том случае, если нужно освободить площадь кухни. Тогда на самом верху можно хранить те кухонные гаджеты, посуду и инвентарь, которыми хозяйка пользуется очень редко. К примеру, безвкусная ваза, подаренная свекровью, прекрасно уместится в таком шкафу наряду с многочисленными пепельницами, селедочницами и прочей утварью.
Подробней про навесные шкафы для кухни читайте в статье «Навесные шкафы для кухни».
Вешаем шкаф
С высотой более или менее определились. Теперь нужно повесить шкафы так, чтобы это было ровно, надежно и не портило стену – мало ли, вдруг вам захочется поменять интерьер кухни. Итак, делаем все поэтапно.
Монтажную рейку нужно крепить на дюбель-гвозди
Способ 1
- Замеряем высоту верхнего шкафа – ваш рост плюс 20-25 см и отмечаем карандашом. С помощью уровня рисуем горизонтальную линию для ориентира.
- Отмечаем место, где будем сверлить отверстие под крепеж: саморез, крючок. Вторую наметку сделаем позже.
- Просверливаем и вставляем крепеж – сделать это надо очень тщательно.
- Поворачиваем шкаф к себе спинкой и прикручиваем петли к задней стенке.
- Теперь понадобится помощь одного из членов семьи. Навешиваем шкаф на единственный пока крепеж, выравниваем его, помогая себе правилом, и намечаем, где будет отверстие для второго крепежа.
- Просверливаем и вставляем второй крепеж.
Если шкаф не один, а несколько, проделайте все шаги для каждого из них. Следите, чтобы все висели на одном уровне – для того вы и прочертили горизонтальную линию.
Крепление на дюбель-гвозди
Второй совет касается скрепления шкафов между собой. Делают это и из эстетических соображений (чтобы они не расходились), и для пущей надежности.
- Теперь вешаем шкафы, монтируем верхний карниз, проверяем работу подсветки, если она есть.
- Вставляем полки и устанавливаем дверцы. Если есть перекос, подтягиваем или ослабляем регулировочные винты.
Способ 2
Чтобы не ковырять море отверстий в стене, можно сделать все несколько иначе. Прикрепить к стене монтажную рейку и уже на нее повесить шкафы.
Металлическая монтажная рейка
Сначала нужно выровнять стену, хотя предполагаем, что после ремонта они и так идеально ровная.
- Подключаем светильники и розетки (сколько их должно быть и где, читайте в статье «Расположение розеток на кухне»).
- Вы уже знаете, на какой высоте вешают кухонные шкафы. Сделайте пометку на стене, где будет крепеж. Заодно и сам “отпечаток” шкафа можно нарисовать.
- Делаем отверстия и крепим монтажную рейку.
- С обратной стороны шкафа крепим петли и крючки.
- Проверяем, висят ли они строго горизонтально.
- Навешиваем шкафы на крепежную планку.
- Шкафы между собой нужно стянуть, для этого в боковых стенках насквозь просверливаем отверстия. Чтобы на стенках не образовывались трещины и сколы, просверлите сначала узкое отверстие, а затем расширьте его. Второй вариант – плотно прижать брусок к стенке шкафа там, где будет выходить сверло. Теперь можно стянуть шкафы и приступать к следующему пункту.
- Вставляем полки.
- Крепим дверцы.
- Проверяем, плотно ли они закрываются. При необходимости регулируем болты.
Крепление шкафов на специальный навес
При этом способе шкафы можно передвигать по рейке, как по рельсам. Однако и стоит такая конструкция значительно дороже простых шурупов, крючков и петель. Зато не нужно мудровать с разметкой, нанимать помощника. Шкафы можно двигать как по вертикали, так и по горизонтали благодаря крутящимся винтам и таким образом их выровнять. Если шкаф очень тяжелый, можно упрочить конструкцию, разбив рейку на части и прикрепив каждую на 3 винта.
Примерно так крепится шкаф на монтажную рейку.
Есть у способа с монтажной рейкой и минусы. Между стеной и шкафом будем небольшой отступ. Поэтому по низу шкафа с задней стороны нужно прибить рейку такой же толщины либо же вешать шкаф так, чтобы нижний край находил на кухонный фартук.
Важные советы
- Шкафы с посудой становятся довольно тяжелыми. А если мебель у вас еще и деревянная, то и подавно. Крепежные материалы нужно выбирать максимально качественные, чтобы мебель не упала вниз.
- В отверстия вставьте не дюбеля и не деревянные чопики, а анкерные болты – на сегодняшний день они наиболее прочные.
- Чтобы выровнять стену, понадобился толстый слой штукатурки? Нужно монтировать шину, тогда конструкции обретет надежность.
- Не вешайте шкафы на стены из гипсокартона – они просто не выдержат.
- Перед покупкой нового кухонного гарнитура заранее замерьте не только длину стен, но и высоту потолков. Нет гарантии, что шкафы идеально впишутся в вашу кухню.
- Учитывайте ширину нижней тумбы или столешницы – вам должно быть удобно открыть дверцу настенного шкафа и быстро что-то достать, не пользуясь табуреткой, подставкой или высоким ростом супруга.
- Важно не забыть и о расстоянии между тумбой и настенным шкафом. Между ними должно поместиться еще много всякой кухонной утвари от тарелок до бытовой техники. Да и готовить, мыть посуду, согласитесь, не комфортно, если лбом все время упираетесь в шкаф. Выход – глубина нижней тумбы больше, нежели верхней.
- Прежде чем сверлить отверстия для монтажной планки, крючков или иного крепежа, убедитесь, что именно на этой высоте не проложена проводка. Известны случаи, когда одним легким нажатием на курок дрели была обесточена вся квартира.
Некачественный монтаж шкафов на кухне может повлечь подобные последствия.
Теперь вы знаете, как определить высоту крепления шкафов. Ее можно определить, исходя из стандартов, требований кухни или собственного роста. Главное, что это нравилось вам.
расстояние от столешницы до навесных шкафов, высота установки
В статье я рассмотрю, как правильно вешать кухонные шкафы и на какой высоте. Расскажу, какое расстояние должно быть между шкафчиком и столешницей, плитой и другим шкафом. Разъясню нужно ли предварительно подготавливать стены и если надо, то, как это сделать. Какие существуют крепления и как их правильно подобрать, в зависимости от стен и самих шкафов, как регулировать петли. Рассмотрю весь процесс навешивания, и какие существуют нюансы.
На какой высоте должны находиться кухонные шкафчики
Выбор высоты навешивания шкафов на кухне зависит от многих вещей, ведь каждый хозяин желает, чтобы его кухонное пространство не только отвечало всем требованиям и стандартам, но и было удобным и функциональным.
Чтобы не ошибиться и правильно подобрать высоту монтажа, чтобы повесить, учитываются такие факторы:
- форма, размер и назначение мебели;
- размещение – будет ли под шкафами свободное пространство или же будут установлены другие предметы быта;
- рост всех членов семьи или хотя бы того, кто проводит на кухне больше времени.
Чаще всего пространство под навесными шкафами заставляют предметами мебели либо крупногабаритными бытовыми приборами.
В основном под шкафчиками располагается столешница и в этом случае необходимо четко понимать, как будет использоваться данная поверхность.
Так как на столешнице обычно размещается различная кухонная утварь и оборудование, то следует рассчитывать так, чтобы нижний край шкафчика не мешал функционалу данных предметов. Так же на рабочей поверхности должно быть комфортно, работать (чистить и резать овощи, мыть посуду).
Однако не стоит забывать, что подвес, шкафы не нужно закреплять и слишком высоко. Открывая дверцы шкафа человек должен видеть, что размещено на средней полке, и этот предмет должен находиться в легком доступе. Если же шкафчик будет слишком высоко, то придется использовать стремянку, а это плохо. Учитывая все факторы, было рассчитано самое маленькое и самое большое расстояние между нижним краем шкафов и столешницей:
- Наименьшее – 45 см.
- Наибольшее – 60 см.
А вот над варочной плитой вешать шкафы нельзя, так как это запрещено нормами пожарной безопасности. Данное правило необходимо обязательно выполнять, так как в противном случае может произойти возгорание, да и материал, из которого изготовлена мебель, быстро придет в негодность. Над варочной поверхностью должна быть вытяжка.
Навесные шкафы должны висеть плотно друг к другу.
Пространство между шкафами оставляют только для установки вытяжного элемента. Подвесные шкафчики можно даже скрепить между собой
Крепления для навешивания кухонных шкафчиков
Когда все рассчитано и подобран самый подходящий уровень планки для навески шкафов, следует уделить особое внимание надежности их крепления к стене.
Необходимо учитывать, что крепления будут удерживать не только вес самой модели, а и содержимого. Они должны быть очень надежными, чтобы кухонный гарнитур в одно прекрасное время не упал на человека.
Так же не менее важной является технология монтажа, крепеж, ведь если ее соблюдать, то не придется тратить лишние силы и время. При правильном выборе крепления и соблюдении технологических моментов навешивание шкафов – дело не сложное.
Выделяются несколько способов навешивания шкафов, и выбирать следует тот, что подойдет для материала, из которого выполнены как стены, так и мебель.
Повесить самому верхние секции не так просто, как может показаться с первого взглядаУголок подвесной
Данный способ является самым старинным, но одновременно и самым эффективным и хорошим. Этот метод пришел еще с советских времен.
Такая система крепления очень надежна.
Берется металлический уголок, в котором два отверстия по краям. Один край при помощи гайки и болта фиксируется на верхней части мебели, а второй крепится на саморезы, которые вкручиваются в установленный в стену дюбель.
Крепления для кухонного гарнитураРейка с навеской
Еще одним распространенным способом подвесить кухонных моделей выступает навесная рейка. Она состоит из двух элементов: металлической монтажной рейки и металлической навески, заключенной в пластмассовый корпус и имеющей крючок для крепления к рейке.
Она крепится на стену дюбелями и саморезами на стандартную нужную высоту.
Навесная рейка выступает самым подходящим способом крепления мебели на стены из шлакобетона, газосиликата и гипсокартона.
Подготовка стен
Перед тем как начинать монтаж навесных мебельных гарнитов желательно произвести выравнивание стен.
Если имеется угловой шкафчик, то нужно достичь того чтобы угол был ровно 90 градусов, иначе будут затруднения при навеске.
Пошаговая инструкция
Для того чтобы навесить кухонные модели на монтажную рейку необходимо проделать следующие действия:
- Перед началом монтажа нужно убрать дверцы со шкафчиков и закрепить крючковые навесы.
- Прислоняем мебель к стене на нужной высоте, выравнивают при помощи строительного уровня и отмечают предполагаемое место крепления. Далее по периметру кухни прочерчиваем линию в местах подвешивания шкафов.
- Прикладываем монтажную рейку к линии и сквозь отверстия сверлим стену. Воспользовавшись дюбелем, кронштейном и саморезом, закрепляем рейку на стене. На саморезы следует надевать специальные шайбы, так как обычно отверстия в рейке больше шляпок саморезов.
- Навешивает каркасы на рейку и выравниваем. Если необходимо, то можно скрепить их между собой.
- Далее навешиваем дверцы и регулируем их.
Для подвешивания на уголки выполняем такие действия:
- Крепим уголки к деревянным шкафчикам;
- замеряем и при помощи строительного уровня отмечаем на стене вертикальные границы шкафов;
- прикладываем мебель к стене, на нужном расстоянии, выравниваем и через отверстие в ушке отмечаем точки крепления;
- в отмеченных точках сверлим отверстия, забиваем дюбеля и вкручиваем саморезы;
- на саморезы навешиваем модели, вставляем полочки, а затем надо прикрепить и отрегулировать дверцы, прикрепить фурнитуру, можно на столе.
Нюансы установки
- Перед началом монтажа запаситесь необходимыми инструментами. Для кирпичных стен подойдет простая дрель, а вот если стены бетонные, то понадобится перфоратор.
- Не стоит для закрепления выбирать слишком большие крепежные детали.
- При проделывании отверстия в стене учитывайте толщину слоя штукатурки. Нельзя забывать, что дюбель должен находиться в кирпиче, а не в штукатурке. Размер отверстия в кирпиче должен быть не менее 5 см, что бы свободно прикрутить.
- Старайтесь избегать навешивания шкафов на стены из гипсокартона, потому что такие конструкции не надежны.
- Не рекомендуется перегружать навесные модели.
Крепление кухонных гарнитуров не является сложной задачей, не тяжело и регулировка петель, если нет возможности доверить выполнение работы профессионалам, то не бойтесь и проведите монтаж самостоятельно. Главное внимательно прочесть статью и проблем не возникнет.
Высота верхних кухонных шкафов: какой они должны быть?
Помимо стиля и материала, высота является одним из наиболее важных факторов, которые следует учитывать при установке кухонных шкафов, особенно верхних. Чтобы успешно выполнить эту задачу и добавить элегантности вашей кухне, вам может потребоваться дизайн от эксперта. Если высота рассчитана неправильно, шкафы будут выглядеть очень потрепанными, а на столешнице будет казаться тесной. Чтобы избежать этих ошибок и узнать правильные требования к выбору верхнего кухонного шкафа, продолжайте читать эту статью.
Если у вас обычные шкафы размером 34 с половиной дюйма, просто поместите верхние шкафы на 18 дюймов над ними, и все будет в порядке.
Но если у вас есть нижние шкафы нестандартной высоты, нам, возможно, придется относиться к ним по-другому. Вот список вещей, которые следует учитывать, чтобы решить, какой высоты должны быть верхние кухонные шкафы и какой из них выбрать:
- Высота потолка
Обычная высота кухонного потолка составляет восемь футов, и если это так, убедитесь, что шкафы доходят до самого потолка.Большинство шкафов, которые можно найти в настоящее время, должны регулироваться по потолку.
Но если высота вашего потолка превышает 8 футов, верхний шкаф меньшего размера необходимо будет установить над верхним шкафом, и это должен сделать профессионал. Или другой вариант — украсить верхнее пустое пространство такими предметами, как комнатные растения и т. Д.
Столешница — это, по сути, рабочий стол на вашей кухне, в ней есть все необходимое для приготовления пищи. Эта зона наиболее практична, поэтому ее следует оставить просторной, чтобы было достаточно места, чтобы можно было свободно готовить.Наименьшее пространство, которое должно быть между столешницей и верхними кухонными шкафами, составляет 18 дюймов, но оно может даже увеличиваться до 20-22 дюймов. Но если вы невысокого роста, вы можете немного опустить их, чтобы получить доступ к верхним полкам верхних шкафов.
Духовка обычно находится на одном из концов столешницы, а мойка — рядом с ней или на другом конце. Нет точного измерения того, насколько высоки верхние шкафы должны быть над раковиной или духовкой.Но обычно расстояние от верхних шкафов до духовки должно быть таким же, как расстояние от духовки до пола. Кроме того, чтобы не было пятен на задней панели в нижней части верхнего шкафа, оставьте больше места между верхним шкафом и мойкой. Обычно верхние шкафы должны быть на высоте не менее 12 дюймов над раковиной.
Об эстетическом качестве кухонных шкафов иногда можно забыть. Однако, поскольку вы собираетесь произвести немало расчетов перед установкой верхних кухонных шкафов, почему бы не убедиться, что они также хорошо выглядят? Учтите, сколько места на кухне доступно для установки верхних шкафов.Правило здесь довольно простое: более высокие шкафы для более высокого потолка и более короткие для более коротких потолков.
Последнее, что нужно учитывать перед окончательным решением, — это рост пользователя. Стандартный самец может достигать примерно 7 футов, а стандартная самка может достигать примерно 6,5 футов. Вот почему потолки в большинстве домов расположены на высоте 8-9 футов над землей. Таким образом, при установке верхних шкафов убедитесь, что вы можете легко добраться до верха шкафов. Если вам нужно уменьшить высоту, помните, что это также будет означать уменьшение высоты верхних шкафов, чтобы уравнять верхние слои всех шкафов.В этом случае наиболее безопасным вариантом является выбор шкафа меньшей высоты и выполнение карниза сверху, чтобы заполнить пустое пространство.
Два основных варианта верхних шкафов — 36 и 42 дюйма. Если вы имеете дело с потолком высотой 36 дюймов, вполне безопасно выбрать 36-дюймовый потолок. Они не будут касаться крыши потолка, поэтому возможность добавления молдинга можно оставить на потом. Или, если вы решите вообще не ставить корону и все равно хотите, чтобы шкафы доходили до самого верха, вы можете просто добавить тумбу наверху, чтобы создать иллюзию более высоких шкафов.
Если вам нужно больше места в верхних кухонных шкафах, 42-дюймовые — это то, что вам нужно. Но они сопряжены с некоторыми дополнительными хлопотами, к которым нужно быть готовым. Например, нет абсолютно ровного потолка от края до края, а значит, для установки 42-дюймовых шкафов. От профессионала потребуется выполнить некоторые строительные работы, чтобы верх шкафов равномерно прилегал к потолку. Кроме того, это также означает потерю возможности добавлять какие-либо молдинги к верху.Итак, если вы хотите приобрести 42-дюймовый шкаф и использовать дополнительное пространство, будьте готовы к дополнительным усилиям, которые вам необходимо приложить.
Определить правильную высоту верхних шкафов на кухне — нелегкая задача. В то время как некоторые люди могут позволить себе просто выбрать шкаф общей высоты, все настоящие домохозяйки знают, что шкафы должны быть установлены идеально и должны выглядеть даже со всех сторон. Внимательно следуйте инструкциям в этой статье, и вы сможете решить, на какой высоте должны висеть верхние шкафы, а также не забывайте обращаться за помощью к профессионалу, когда это необходимо.
Связанные блоги
Оптимальная высота верхнего кухонного шкафа
Хотя это и не предусмотрено строительными нормами, стандартные методы строительства устанавливают эргономические стандарты для размеров кухонных шкафов, их высоты установки и даже места для ваших пальцев ног. Эти измерения основаны на исследованиях, предлагающих оптимальные размеры, обеспечивающие наиболее комфортное рабочее пространство для пользователей. Иногда их видоизменяют для особых нужд — например, кухни, приспособленные для пользователей с физическими ограничениями, — но в подавляющем большинстве кухонь эти размеры будут тщательно соблюдаться.
Стандарты для верхних шкафов на кухне
Верхние навесные шкафы на кухнях почти всегда устанавливаются, поэтому нижний край шкафа находится на высоте 54 дюйма над полом. Причина этого в том, что зазор 18 дюймов между базовыми шкафами и верхом считается оптимальным рабочим пространством, а с базовыми шкафами, как правило, высотой 36 дюймов (со столешницей в комплекте) и глубиной 24 дюйма, верхние шкафы, начиная с 54 дюймов, обеспечивают желаемое. 18-дюймовый просвет.
Показано, что эти расстояния являются эргономически практичными для людей ростом более 4 футов и оптимальными для среднего пользователя ростом 5 футов 8 дюймов. Со стандартным верхним шкафом 30 дюймов высотой и 12 дюймов глубиной 5 футов. 8-дюймовый пользователь сможет добраться до всех полок без ступеньки. Тем, кто ниже ростом, может понадобиться ступенька или помощь более высокого члена семьи, чтобы легко получить доступ к верхним полкам.
Конечно, есть исключения из этих стандартов. Специальные навесные шкафы, которые помещаются над холодильником или плитой, будут установлены выше, чем другие верхние шкафы, а также могут быть глубже, чем стандартные 12 дюймов.
Изменение высоты установки
Эти стандарты установки могут незначительно изменяться, чтобы соответствовать потребностям пользователей, хотя это ограничено размерами стандартных шкафов. Семья с членами 5 футов 5 дюймов или меньше может, например, установить базовые шкафы на высоте 35 дюймов над полом, затем оставить 15-дюймовое рабочее пространство и установить верхние шкафы, начиная с 50 дюймов над полом, а не на высоте обычных 54 дюйма. Семья с очень высокими членами может для удобства установить шкафы немного выше.Эти небольшие отклонения находятся в пределах допустимого диапазона и не сильно повлияют на коммерческий потенциал вашего дома. Тем не менее, вы должны быть осторожны с более яркими отклонениями от обычных стандартов дизайна при настройке кухни, так как это может затруднить продажу вашего дома в будущем.
Кухни для людей с ограниченными возможностями
Для домов или квартир, используемых людьми с ограниченными физическими возможностями, например, людьми, прикованными к инвалидным коляскам, могут потребоваться более значительные различия в стандартах высоты.Можно приобрести или изготовить специальные базовые шкафы высотой 34 дюйма или ниже, а верхние шкафы можно установить на стене намного ниже, чем обычно, чтобы инвалиды-колясочники могли легко добраться до них. опускает верхние навесные шкафы, делая их удобными в использовании как для людей с ограниченными возможностями, так и для физически здоровых членов семьи.
Как определить высоту установки кухонных шкафов | Руководства по дому
Для красивой кухни нужны не только красивые шкафы.Правильная установка — это разница между любительской работой и приятной для глаз. Высота шкафа не всегда задана. Необходимо учитывать измерения, выравнивание и особые обстоятельства, и некоторые домовладельцы нанимают краснодеревщика для изготовления нестандартных размеров. Это трудоемкая работа, но она того стоит.
Стандартные базовые шкафы
Большинство базовых шкафов имеют высоту от 34 1/2 до 35 дюймов без столешницы. Это также верно для островов и полуостровов.Идеально ровный пол — редкость, поэтому регулировка является частью большинства работ. Шкафы должны быть ровными, даже если пол неровный. В противном случае шкафы повторяют наклон или изгиб пола, а готовая столешница повторяет неровности шкафов. Измерение стены от самого высокого места на полу позволяет настроить все шкафы в соответствии с тем, который будет находиться на самом высоком уровне. Выравнивание осуществляется регулировочными шайбами под шкафами. Острова и полуострова не крепятся к стене, поэтому поместите уровень сверху и используйте прокладки.
Специальная высота базового шкафа
Некоторым домашним хозяйствам требуются более высокие или более короткие базовые шкафы. Например, столешницы, доступные для инвалидных колясок, часто имеют высоту 28 дюймов. Высота напольного шкафа уменьшается за счет толщины столешницы. Если физическое состояние требует ограниченного изгиба, стандартная высота столешницы часто бывает слишком короткой. В этих случаях 35-дюймовый шкаф работает только в том случае, если столешница регулируется и может подниматься. В противном случае лучшим вариантом могут быть более высокие базовые шкафы. Чтобы избежать изгиба, правильную высоту столешницы определяют, измеряя расстояние от пола до локтя пользователя, а высота шкафа соответственно уменьшается на толщину столешницы.
Верхние шкафы
Некоторые верхние шкафы доходят до потолка; некоторые нет. Высота установки зависит от количества места, необходимого между верхней частью стойки и нижней частью верхних шкафов. В большинстве домов это расстояние составляет 18 дюймов; в доступной кухне верх удобнее в 15 сантиметрах от стойки. Краснодеревщик может построить специальные верхние шкафы, которые плотно прилегают к потолку. В стандартных шкафах вид заподлицо достигается с помощью декоративных молдингов, таких как корона, для закрытия зазоров.Обычны шкафы, не доходящие до потолка, и применяется тот же интервал 18 или 15 дюймов. Некоторые верхние шкафы намного короче и предназначены для особых мест, например, над холодильником, плитой или раковиной. Чтобы получить нужную высоту, совместите верхние части коротких шкафов с верхними частями других в комнате.
Советы по установке
Чтобы тяжелые верхние шкафы оставались прямыми до тех пор, пока они не закрепятся, отметьте горизонтальную линию на стене вдоль нижней стороны шкафа на нужной высоте, прикрепите прямую доску к стене по этой линии и используйте край доски в качестве направляющей и опоры.После того, как он будет удален, участок покрывается фартуком или залатывается и окрашивается. Если верхние шкафы устанавливаются перед столешницей, измерьте высоту 18 дюймов от верха основного шкафа плюс толщину столешницы, чтобы найти правильную высоту для верха.
Базовые шкафы выровнены в двух направлениях: из стороны в сторону и спереди назад. Они также прикреплены якорем через заднюю часть к стене и через стороны друг к другу. Установите и выровняйте первый напольный шкаф в ряду и прикрепите его к стене, затем установите остальные шкафы.Верхние шкафы крепятся к стене и друг к другу, а некоторые потолочные крепления крепятся к потолку, стене и друг другу.
Ссылки
Биография писателя
Кэрол Олдройд, писательница из Восточного Теннесси, является автором множества статей по домашнему благоустройству, человеческим ресурсам, кадрам и праву. Помимо получения степени в области параюридических исследований, она имеет более чем 10-летний опыт ремонта новых домов и восстановления исторической собственности.
Как определить высоту установки для кухонных шкафов
Даже самые красивые кухонные шкафы могут выйти из строя, если они не будут установлены на нужной высоте.Очень важно определить правильную высоту установки шкафов, иначе вы рискуете не полностью изменить внешний вид, ощущение и долговечность реконструкции вашей кухни.
Определение высоты установки шкафа включает в себя тщательные измерения, выравнивание и учет особых обстоятельств. Если ваша кухня более сложна по размеру и доступному пространству, возможно, стоит заказать индивидуальные шкафы, соответствующие доступному пространству на стене.
Правильная высота шкафа зависит от типа устанавливаемых шкафов.Стандартные базовые шкафы имеют высоту от 34 ½ до 35 дюймов, не включая столешницу, остров и т. Д. Большинство этажей неровные, но шкафы должны быть ровными. Чтобы убедиться в этом, снимите измерения вверх по стене от самой высокой точки пола. Выравнивание осуществляется путем размещения регулировочных шайб под шкафами. Что касается кухонных островков, поместите уровень сверху и используйте прокладки.
Special Base Cabinet Heights используется в домах, где требуются более высокие или более короткие базовые шкафы, чем обычно.В зависимости от того, зачем нужны специальные шкафы, подходящая высота будет варьироваться. Например, шкафы для инвалидов-колясочников часто располагаются на высоте 28 дюймов. Измеряя расстояние от локтя пользователя до пола, можно определить наилучшую высоту столешницы. Как только вы определите этот номер, вы сможете найти идеальную высоту шкафа.
Верхние шкафы могут доходить до потолка, а могут и не достигать его. Вы определите правильную высоту, приняв во внимание, сколько места необходимо между нижним и верхним шкафами.Обычно это около 18 дюймов. Если вам нужно дополнительное пространство, можно изготовить шкафы на заказ, которые будут располагаться прямо у потолка. Стандартные шкафы могут добиться того же внешнего вида, просто добавив лепнину. Некоторые шкафы делают меньше других, чтобы в них можно было разместить холодильник или другую технику. Чтобы создать плавный вид, сочетайте более короткие шкафы с верхними частями других шкафов на кухне.
Как правильно установить кухонные шкафы на нужной высоте
Необходимые инструменты
-4 «уровень
-Индикатор шпильки
-Измерная лента
-Пистолет для винтов
-Карандаш
-Зажимы
-Готовые к установке шкафы
-Деревянные прокладки
-1-1 / 2” винты
-1 × 2 ригель доска
Первый шаг — измерить и разметить стену .Начните с измерения фактической высоты ваших базовых шкафов. Стандартные шкафы обычно имеют высоту 34-1 / 2 дюйма. Убедитесь, что у вас есть дополнительные 1-1 / 2 дюйма для столешниц и 18 дюймов для стандартного фартука. Если вы берете во внимание фартук, то общее расстояние от пола до низа верхних шкафов должно составлять 54 дюйма.
Карандашом наметьте четкую линию на стене на отметке 54 дюйма. Используйте уровень, чтобы убедиться, что ваша леска полностью прямая.Это послужит вашим ориентиром при развешивании даже шкафов.
Затем с помощью прибора для поиска стоек найдите стеновые стойки . Вы должны найти настенные стойки, чтобы повесить шкафы, которые будут прочными и должным образом поддерживаться. Помните, что при этом вы не повредите электрическую проводку или водопровод.
Повесьте бухгалтерскую доску по нарисованной карандашом линии, используя предварительно расположенные шпильки. Это служит временной системой поддержки, которая понадобится вам для установки шкафов на протяжении всего процесса установки.
Удалите все дверцы и фурнитуру из шкафных ящиков . Тщательно отметьте все детали, чтобы их можно было вернуть на место, когда придет время. Удаление громоздких аксессуаров делает шкафы легче и упрощает установку.
Пришло время повесить навесные шкафы . Соедините шкафы вместе в зависимости от того, сколько шкафов вы можете безопасно и уверенно поднимать и устанавливать за один раз, используя решетчатую доску, обычно не более 2. Используйте зажимы, чтобы закрепить стойки, и убедитесь, что шкафы установлены заподлицо.Вы скрепите два шкафа вместе на перекладине с помощью шурупов. Используйте один винт вверху и один винт внизу, где шкафы соединяются вместе. Как только шкафы закреплены, поднимите их на верхнюю часть бухгалтерской доски. Проверить отвес и уровень, при необходимости установить регулировочную прокладку.
Закрепите шкафы на стене с помощью предварительно определенных шпилек , но только после того, как вы убедитесь, что шкафы выровнены. Если между стеной и последним шкафом есть щель, вам нужно будет заполнить ее при помощи планки-заполнителя.Перед установкой последнего шкафа вам необходимо измерить, разметить, вырезать и прикрепить заглушку.
Добавьте дверцы шкафа и фурнитуру обратно на . После того, как шкафы будут полностью закреплены и установлены, пора снять гроссбух и снова установить фурнитуру и двери.
Когда мебель должна быть поднята на потолок?
Высота потолка
Большинство кухонь имеют потолки высотой 8 футов (96 дюймов) или 9 футов (108 дюймов), и если ваш потолок попадает в эту категорию, у вас есть несколько вариантов, если вы хотите, чтобы шкаф выглядел до потолка.
Можно заполнить все пространство шкафами — либо купив шкафы, которые точно заполняют пространство, либо разместив два ряда навесных шкафов, которые вместе занимают все вертикальное пространство. Общее практическое правило — настенные шкафы монтируются так, чтобы нижний край находился на высоте 54 дюйма над полом, что означает, что потолок высотой 8 футов создает 42 дюйма доступного пространства для навесных шкафов, а высота потолка 9 футов. потолок имеет 54 доступных дюйма.
Многие производители столярных изделий предлагают навесные шкафы высотой 12, 15, 18, 24, 30, 32, 36 и 42 дюйма.Если у вас потолки высотой 8 футов и вам нужны шкафы, которые доходят до потолка, то настенные шкафы высотой 42 дюйма подойдут идеально. Если у вас потолки высотой 9 футов, вы можете заполнить доступное пространство на стене в 54 дюйма одним рядом шкафов высотой 36 дюймов с рядом 18-дюймовых шкафов над ними. Другой вариант — 12-дюймовые шкафы поверх 42-дюймовых шкафов. Если над навесными шкафами есть небольшие щели, их обычно легко заполнить карнизами или другой декоративной отделкой.
Если у вас необычная высота потолка, специалист по краснодеревщикам может построить шкафы, которые впишутся в любое пространство — что может быть наиболее практичным решением, если у вас потолки высотой 10 футов. В качестве альтернативы вы можете заполнить пространство над одним рядом стандартных шкафов фальшивыми панелями шкафов, которые придают внешний вид, но не функцию (или стоимость) шкафов, идущих до потолка.
Если у вас есть необычные обстоятельства, когда потолки выше 10 футов, как это иногда бывает в лофт-кондоминиумах, лучше не пытаться поднимать шкафы до упора.Устанавливать такую массу шкафов непрактично и не привлекательно.
Реконструкция 101: что нужно знать об установке кухонных шкафов и ящиков
Установка кухонных шкафов — не работа для среднего домовладельца. Подумайте об общем весе всей керамики, стеклянной посуды и приборов, хранящихся в ваших настенных шкафах, и о том, как было бы катастрофой, если бы эти шкафы упали. Достаточно сказано? Оставим установку профессионалам.
Но если вы планируете капитальный ремонт кухни, пытаетесь самостоятельно спроектировать кухню или просто хотите быть в курсе при разговоре с подрядчиками, полезно иметь некоторую базовую информацию о шкафу.Мы попросили Скотта Берда из датской компании Reform, которая делает индивидуальные фасады шкафов для шкафов Ikea (а теперь у него есть выставочный зал в Бруклине), шпаргалку по шкафу, все, от того, сколько зазора оставить между верхними шкафами и прилавком, до где , а не для установки ящиков. Скотт подчеркивает, что многие решения кабинета министров зависят от вашего стиля. Но в Reform, говорит он, им нравится, чтобы верхние шкафы отражали размеры нижних шкафов, потому что, как он говорит, «симметрия — это хорошо.”
Вот несколько практических правил, которые следует помнить, когда дело касается кухонных шкафов.
Размеры шкафа
Вверху: реформа оборудовала квартиру в Копенгагене мятно-зелеными нижними шкафами; см. «Кухня недели: стилист из Копенгагена заново изобретает свою кухню, взлом Ikea» для полного обзора. Какой глубины должны быть ящики шкафа?Стандартные навесные шкафы (иногда называемые «верхними шкафами») имеют глубину 12 дюймов; стандартные шкафы основания (под прилавком) имеют глубину 24 дюйма.Но в наши дни, говорит Скотт, все больше компаний производят навесные шкафы глубиной 15 дюймов, что дает больше места для хранения.
Какая оптимальная ширина шкафа?Чем шире шкаф, тем шире дверь, которая занимает больше места, когда распахивается. Это следует учитывать, если на кухне недостаточно места. «В больших домах вы увидите более широкие шкафы с более открытой обстановкой, — говорит Скотт. «Чаще всего мы используем ширину 24 дюйма, которая может иметь либо одну 24-дюймовую дверь, либо две 12-дюймовые двери», — обходной путь для тех, кому нужны широкие шкафы в меньшем пространстве.Скотт говорит, что Reform иногда устанавливает шкафы шириной 36 дюймов; у них могут быть две 18-дюймовые двери, которые открываются посередине. Еще одна идея экономии места: установка двери с петлей сверху, а не сбоку, может работать с меньшими зазорами для более широкого навесного шкафа.
Правильная высота для подвешивания полок
Общие рекомендации по выбору правильной высоты для подвешивания полок
Поскольку мы немного покрасили и модернизировали дом, я очень осторожно выбирал правильные варианты для подвешивания вещей на стенах.На днях я поискал в Интернете рекомендации для , подходящей высоты для установки полок . В своем исследовании я обнаружил, что eHow дал мне лучший совет. Я подумал, что это ценно, поэтому решил передать его вместе со своими собственными выводами!
Общие рекомендации, которые я изучил:
- Для подвешивания полок над диваном измерьте расстояние 10 дюймов над спинкой дивана.
- При вешании полок на стене в коридоре измерьте расстояние от пола до 5–6 футов.
- Для подвешивания полок на стене столовой или гостиной, измерьте расстояние от пола 4–4.5 футов.
Что вам понадобится:
Ссылки ниже являются партнерскими ссылками.
Я начал с измерения ширины пространства стены и ширины полки. Я хотел, чтобы он был по центру, поэтому я вычел ширину полки (из отверстий для шурупов) из ширины стены и разделил ее на 2. Остальное — это расстояние между концами полки и стеной. Я также измерил 4,5 фута от пола.
С помощью моего мужа я заставила его удерживать полку на месте, в то время как я использовала бесплатное приложение уровня на моем iPhone, чтобы убедиться, что полка стоит прямо.Этот от Ridgid справился со своей задачей, но подойдет приложение любого уровня (или уровень). Я пометил карандашом, где нужно разместить шурупы и вкрутить первую (нижнюю) полку.
Что касается второй полки, я подумал, какие безделушки я хотел бы положить на нее, и решил разместить ее на 16 дюймов выше второй полки. Как минимум, расстояние между полками должно составлять не менее 12 дюймов. Однако есть исключения, в зависимости от использования. Он может варьироваться от 8 до 16 дюймов.Опять же, я использовал уровень, чтобы убедиться, что он ровный. На фото это выглядит немного странно, но я виню в этом свои навыки фотографирования. Ха! Обещаю, они натуралы!
На вынос:
- Загрузите любое бесплатное приложение уровня; это сделает ваш проект намного проще.
- На мой взгляд, приведенные выше общие рекомендации по измерениям были идеальными!
Другие рекомендуемые рекомендации по высоте
- Высота полки над столом должна составлять от 22 до 24 дюймов.
- Шкаф или полка над унитазом должны быть примерно на 2 фута над резервуаром.
- Полки над кухонной стойкой должны иметь размер от 18 до 23 дюймов, а расстояние между полками должно составлять около 15 дюймов.
Другие полезные советы и хитрости DIY
Вам также может понравиться это видео на YouTube, которое я сделал, о том, как обновить коммутационные панели с помощью ткани! Мне бы очень понравилось, если бы вы подписались! Заранее спасибо!
Установка верхних кухонных шкафов: делаем все правильно
Современный комплект кухонной мебели обязательно включает в себя навесные шкафы, полки и другие элементы, которые крепятся к стене.
Это практично, эстетично и крайне удобно для хранения продуктов, посуды и кухонной утвари под рукой.
Важно, чтобы их установка (навешивание) было надежным. Как этого добиться?
Навесные элементы кухонной мебели устанавливаются на определенной высоте, с помощью специальных крепежей.
Осуществить монтаж навесных кухонных шкафчиков самостоятельно не составляет особого труда, если придерживаться заранее продуманного плана и следовать определенным правилам. Давайте подробнее разберем некоторые моменты, с которыми нам придется столкнуться во время установки навесной мебели.
Выбор высоты
Самое главное – это комфортное пользование кухонными шкафчиками, поэтому, при подбирании нужной высоты, в первую очередь ориентируемся на рост владельца.
Хозяйка или хозяин кухни должны иметь возможность дотянуться до средних полок шкафов без помощи стульчиков или стремянок.
Запомним! Минимальное расстояние между навесными кухонными шкафами и столешницей по ГОСТу – 45см. Это расстояние способствует комфортной работе и позволит разместить на столешнице такие мелкие бытовые приборы, как электрический чайник, микроволновая печь, блендер, тостер и другие. Стандартом во многих кухонных салонах признано — 60 см.
Для комфортного использования навесных шкафчиков на кухне, необходимо учитывать индивидуальные физические особенности пользователя, а в особенности его рост.
Предлагаем воспользоваться следующими расчетами отношения человеческого роста и расстояния до самой верхней полки:
- рост от 155 до 160 см – высота до верхней полки 175 см;
- рост от 160 до 170 см – высота до верхней полки 190 см;
- рост от 175 до 190 см – высота до верхней полки 200 см.
Исходя из этого определяемся, на какой высоте будем вешать верхние шкафы.
Механизмы крепления кухонных шкафов к стене
После того, как мы определились куда вешать, следует определиться, как именно вешать верхние кухонные шкафы и полки на стену.
Существует два основных способа установки:на уголки и на рейку
- Первый способ уже устаревает. При использовании подвесных мебельных уголков или других крепежных элементов необходимо определить верхнюю границу, на которой будут установлены уголки. Все они должны быть зафиксированы на одной горизонтальной линии. От того, насколько ровно установлены крепежи, зависит успех монтажа навесных шкафчиков. В отличие от реечного механизма навески, установка навесной кухонной мебели на уголки– весьма трудоемкий и долгий процесс. Кроме того, при незначительной ошибке, придется проделывать новые отверстия в стене.
Кухонные шкафы с креплениями на уголках
Нюанс: устаревший — не значит плохой. Именно этим способом навешивания верхних шкафов стоит воспользоваться, если стены при ремонте не выравнивались.
- Механизм навески мебели с помощью монтажной рейки или планки гораздо проще и быстрее в своем исполнении. С этим способом навески сможет справиться один человек, не имеющий специальной подготовки, без чьей-либо помощи. Суть этого способа заключается в следующем: на верхнюю границу стены горизонтально крепится рейка, а к внутренней стенке шкафчиков крепится навеска. Далее шкафчики должны зацепиться навеской за рейку по принципу крючка.
Механизмы крепления навесных кухонных шкафов
Механизмы крепления — вид внутри шкафа
Подготовка стен к работе
Перед тем как приступать к установке навесных шкафчиков на стену, необходимо провести подготовительные работы.
В первую очередь, позаботьтесь о том, чтобы стена была абсолютно ровной и вертикальной по уровню, а углы кухни были строго 90 градусов.
Подготовка стены из гипсокартона для навесных шкафов
Любые электромонтажные и сантехнические работы обязательно должны быть заранее закончены.
Провода и трубы спрятаны в стене, розетки должны быть установлены в таком месте, которое обеспечит легкий доступ к ним и не помешает монтажу навесной кухонной мебели.
Конечная отделка стен обоями, облицовка или покраска должна быть выполнена до крепежа навесных шкафов, так как после навешивания сделать это будет не возможно.
Выбор фурнитуры крепления и инструмент
При выполнении крепежа кухонной мебели на стену вам необходимы следующие инструменты и фурнитура:
- рулетка,
- водяной уровень,
- дрель / перфоратор,
- ручная отвертка или шуруповерт,
- гаечный ключ,
- струбцины,
- молоток.
Запомним! Если та стена, на которую вы собираетесь навешивать кухонные шкафчики деревянная, можно использовать закаленные шурупы с полукруглой головкой. Если стена — из бетона или кирпича , воспользуйтесь дюбелем и пробкой, анкер-болтом, или обычным болтом. Если стена из гипсокартона, купите дюбеля Молли.
Пошаговая инструкция по установке навесных шкафчиков
Навесные кухонные шкафы можно повесить самостоятельно
- При помощи заранее приготовленных регулировочных винтов приведите зацепы на навесках в среднее положение.
- Зафиксируйте навесы на боковых стенках шкафчиков так, чтобы крючки торчали на несколько миллиметров (2-4 мм) из стенки шкафчиков, чтобы он смог зацепиться за крепежные планки.
- Далее необходимо сделать на стене пометки под сверление отверстий, которые нужны для монтажа навесной рейки.
- Просверлите необходимые отверстия, используя сверло подходящего диаметра.
- Если стена требует (особенно если у вас гипсокартон), вбейте в отверстия в стене дюбеля. Зафиксируйте навесную монтажную рейку.
- Далее подвесьте кухонные шкафчики и полки на рейку. Сразу выравнивайте их между собой и по горизонтали, используя заранее приготовленные регулировочные винты.
- При помощи струбцин установите и крепко зафиксируйте шкафчики между собой.
- Просверлите зафиксированные между собой шкафы насквозь, скрепите их межсекционной стяжкой.
- Далее вам осталось поставить все полочки и навесить дверцы на шкафы.
Полезные советы
Высота крепления кухонных шкафов к стене определяется индивидуально
- Навесная рейка должна крепиться немного ниже крайнего верхнего края кухонного шкафчика, примерно на 3-4 см.
- Для регулировки горизонтального положения навесных шкафов лучше воспользоваться водяным уровнем, а не отмерять высоту от пола и потолка, т.к. они не всегда бывают идеально ровными.
- Если ваши стены — гипсокартон, необходимо использовать так называемые дюбеля-бабочки, которые обеспечат плотное прижимание крепления к поверхности гипсокартона.
- Если, во время сверления отверстий, стена начинает крошиться, что часто встречается с гипсокартонном, произведите сначала отверстия более тонким сверлом. Затем в маленьких отверстиях смело проделывайте отверстия нужным сверлом.
- Во время сверления отверстий уделите особое внимание зонам стен, где может проходить проводка.
- Для того чтобы панель кухонного шкафчика не повредилась струбцинами, необходимо поместить между струбциной и панелью шкафа деревянную пластину или клин.
- Часто, во время сквозного сверлении двух стенок, на поверхности шкафчиков могут образовываться сколы. Чтобы этого не случалось, проделывайте сначала тонкие отверстия более тонким сверлом.
А теперь короткое видео: как навесить кухонный шкаф на монтажную рейку.
Высота верхних кухонных шкафов: какой они должны быть?
Помимо стиля и материала, высота является одним из наиболее важных факторов, которые следует учитывать при установке кухонных шкафов, особенно верхних. Чтобы успешно выполнить эту задачу и добавить элегантности вашей кухне, вам может потребоваться дизайн от эксперта. Если высота рассчитана неправильно, шкафы будут выглядеть очень потрепанными, а столешница будет казаться тесной. Чтобы избежать этих ошибок и узнать правильные требования к выбору верхнего кухонного шкафа, продолжайте читать эту статью.
Если у вас обычные шкафы размером 34 с половиной дюйма, просто поместите верхние шкафы на 18 дюймов над ними, и все будет в порядке.
Но если у вас есть нижние шкафы нестандартной высоты, нам, возможно, придется относиться к ним по-другому. Вот список вещей, которые следует учитывать, чтобы решить, какой высоты должны быть верхние кухонные шкафы и какой из них выбрать:
- Высота потолка
Обычная высота кухонного потолка составляет восемь футов, и если это так, убедитесь, что шкафы доходят до самого потолка.Большинство шкафов, которые можно найти в настоящее время, должны регулироваться по потолку.
Но в случае, если высота вашего потолка превышает 8 футов, верхний шкаф меньшего размера необходимо будет установить над верхним шкафом, и это должен сделать профессионал. Или другой вариант — украсить верхнее пустое пространство такими предметами, как комнатные растения и т. Д.
Столешница — это, по сути, письменный стол на вашей кухне, в ней есть все необходимое для приготовления пищи. Эта зона наиболее практична, поэтому ее следует оставить просторной, чтобы было достаточно места, чтобы можно было свободно готовить.Минимальное пространство, которое должно быть между столешницей и верхними кухонными шкафами, составляет 18 дюймов, но оно может даже увеличиваться до 20-22 дюймов. Но если вы невысокого роста, вы можете немного опустить их, чтобы получить доступ к верхним полкам верхних шкафов.
Духовка обычно находится на одном из концов столешницы, а мойка — рядом с ней или на другом конце. Нет точного измерения того, насколько высоки верхние шкафы должны быть над раковиной или духовкой.Но обычно расстояние от верхних шкафов до духовки должно быть таким же, как расстояние от духовки до пола. Кроме того, чтобы не было пятен на задней панели в нижней части верхнего шкафа, оставьте больше места между верхним шкафом и мойкой. Обычно верхние шкафы должны быть на высоте не менее 12 дюймов над раковиной.
Об эстетическом качестве кухонных шкафов иногда можно забыть. Однако, поскольку вы собираетесь произвести немало расчетов перед установкой верхних кухонных шкафов, почему бы не убедиться, что они также хорошо выглядят? Учтите, сколько места доступно на кухне для установки верхних шкафов.Правило здесь довольно простое: более высокие шкафы для более высокого потолка и более короткие для более коротких потолков.
Последнее, что нужно учитывать перед окончательным решением, — это рост пользователя. Стандартный самец может достигать примерно 7 футов, а стандартная самка может достигать примерно 6,5 футов. Вот почему потолки в большинстве домов расположены на высоте 8-9 футов над землей. Таким образом, при установке верхних шкафов убедитесь, что вы можете легко добраться до верха шкафов. Если вам нужно уменьшить высоту, помните, что это также будет означать уменьшение высоты верхних шкафов, чтобы уравнять верхние слои всех шкафов.В этом случае наиболее безопасным вариантом является выбор шкафа меньшей высоты и выполнение карниза сверху, чтобы заполнить пустое пространство.
Два основных варианта верхних шкафов — 36 и 42 дюйма. Если вы имеете дело с потолком высотой 36 дюймов, вполне безопасно выбрать 36-дюймовый потолок. Они не будут касаться крыши потолка, поэтому возможность добавления молдинга можно оставить на потом. Или, если вы решите вообще не ставить корону и все равно хотите, чтобы шкафы доходили до самого верха, вы можете просто добавить наверху тумбу-пустышку, чтобы создать иллюзию более высоких шкафов.
Если вам нужно больше места в верхних кухонных шкафах, 42-дюймовые — это то, что вам нужно. Но они сопряжены с некоторыми дополнительными хлопотами, к которым нужно быть готовым. Например, нет абсолютно ровного потолка от края до края, а значит, для установки 42-дюймовых шкафов. От профессионала потребуется выполнить некоторые строительные работы, чтобы верх шкафов равномерно прилегал к потолку. Кроме того, это также означает потерю возможности добавлять какие-либо молдинги к верху.Итак, если вы хотите приобрести 42-дюймовый шкаф и использовать дополнительное пространство, будьте готовы к дополнительным усилиям, которые вам необходимо приложить.
Определить правильную высоту верхних шкафов на кухне — нелегкая задача. В то время как некоторые люди могут позволить себе просто выбрать шкаф с общей высотой, все настоящие домохозяйки знают, что шкафы должны быть установлены идеально и должны выглядеть даже со всех сторон. Внимательно следуйте инструкциям в этой статье, и вы сможете решить, на какой высоте должны висеть верхние шкафы, а также не забывайте обращаться за помощью к профессионалу, когда это необходимо.
Связанные блоги
Насколько высоко должны быть кухонные навесные шкафы от пола?
Мы можем получать комиссионные за покупки, сделанные по ссылкам в этом посте.
Навесные шкафы на кухне используются ежедневно, но они также находятся на уровне глаз. Это означает, что кухонные навесные шкафы могут быть невероятно полезными как по функциональности, так и по стилю. Итак, вы, вероятно, задаетесь вопросом, на какой высоте следует устанавливать новые шкафы, если у вас нет существующих измерений, на которые можно было бы ссылаться.Или вы можете изменить шкафы, чтобы они лучше соответствовали вашему росту. Мы тщательно исследовали стандартную высоту для установки навесных шкафов на кухне.
Идеальная высота кухонных навесных шкафов будет меняться в зависимости от высоты базового шкафа и столешницы. Это связано с тем, что по общему правилу кухонные навесные шкафы должны висеть на высоте 18 дюймов над столешницей. Итак, стандартный навесной шкаф должен быть установлен на высоте 54 дюйма над полом. Однако вам, возможно, придется внести изменения в индивидуальную высоту базовых шкафов и столешниц.
Установка любых новых приспособлений может быть сложной задачей, но кухня действительно должна быть сделана правильно, чтобы избавить вас от головной боли. Перед установкой чего-либо вам следует изучить множество серьезных правил. Продолжайте читать, чтобы узнать, как высоко устанавливать шкафы, где держать их заподлицо и какие размеры лучше всего.
Какая стандартная высота нижних кухонных шкафов?
Нижние шкафы на кухне имеют стандартную высоту, также называемые базовыми шкафами .Эти стандарты рассчитаны на людей среднего роста. Таким образом, столешницы можно использовать с комфортом.
Таким образом, большинство базовых шкафов имеют высоту около 34,5 дюймов. Но вы также должны учитывать толщину столешницы, которую вы ставите на нее. Большинство столешниц имеют толщину около дюйма. Но некоторые материалы, такие как мрамор, могут потребовать более толстых столешниц для большей прочности или демонстрации своего стиля.
Помните, что базовые шкафы будут определять высоту ваших верхних шкафов.Стандартная высота верхних шкафов составляет всего 54 дюйма от пола из-за базовых шкафов.
Это означает, что между двумя рядами шкафов должно быть не менее 18 дюймов. Это дает достаточно места для обычного фартука. Фартук — это защитная зона над раковиной, которая предотвращает повреждение водой. Они распространены, потому что они очень полезны, поэтому вы можете захотеть один в будущем, если у вас его нет сейчас.
Нажмите здесь, чтобы увидеть эту кожуру и наклейку на фартуке на Amazon.
Другими словами, вы всегда должны держать расстояние не менее 18 дюймов между базовыми шкафами и верхними шкафами. Это также поможет держать верхние шкафы в пределах досягаемости.
Большинство верхних шкафов имеют несколько полок. Если вы не установите верхние шкафы достаточно низко, будет сложно добраться до всего, что находится внутри. Эффект пульсации базовых шкафов поддерживает их высоту от 32 до 36 дюймов.
Следует ли устанавливать кухонные шкафы заподлицо со стеной?
Всегда лучше держать кухонные шкафы заподлицо со стеной.Это создает намного больше поддержки и стабильности. Это может быть хорошо для базовых шкафов, которые являются основой всей вашей деятельности на столешнице. Но для верхних шкафов это совершенно необходимо.
Когда вы устанавливаете кухонные шкафы на стене, вы должны прикрепить их к стойкам. Стеновые стойки — это вертикальные балки внутри ваших стен, которые обеспечивают устойчивость всего. Это делает стойки надежным способом крепления верхних шкафов к стене.
Нажмите здесь, чтобы найти этот поисковик на Amazon.
При установке шкафов вам понадобится устройство для поиска стоек. Это позволяет закрепить верхние шкафы прямо на стеновых стойках. Естественно, установка шкафов заподлицо со стеновыми стойками — единственный способ передать лучшую структурную устойчивость стен на шкафы. В противном случае вы можете прикрепить свои шкафы к чему-то столь же непрочному, как чистый гипсокартон.
Должны ли кухонные шкафы касаться пола?
Кухонные шкафы обычно крепятся непосредственно к черному полу.Затем вокруг шкафов устанавливается напольное покрытие и вырезается по форме. Черный пол часто сделан из бетона и является основным источником устойчивости всего дома.
Такая прочность обычно необходима для того, чтобы выдержать вес базовых шкафов и любых дополнительных приспособлений или приборов. Вы можете прочитать этот пост, чтобы узнать, сколько места должно быть между плитой и шкафами.
Рассмотрим тип покрытия
Однако иногда можно поставить кухонный шкаф поверх напольного покрытия.Эта часть пола является уровнем поверхности, который находится поверх чернового пола и защитного покрытия.
При укладке кухонных шкафов на напольный материал необходимо обращать особое внимание на тип используемого напольного покрытия. Это может определить, могут ли ваши шкафы касаться пола.
Например, никогда не рекомендуется устанавливать базовые шкафы непосредственно на плавающий пол. Плавающий пол обычно изготавливается из ламината и имеет уникальный метод укладки.Плавающий пол — это просто набор взаимосвязанных частей, который не прибивается или не приклеивается к основанию и черновому полу.
Размещение базовых шкафов непосредственно на таком напольном покрытии приведет к деформации и поломке предметов. Это потому, что давление будет мешать плавающему полу дышать при повышении температуры. Кроме того, шкафы обычно необходимо прибивать гвоздями, что ослабляет ламинат. В этом случае было бы лучше прикрепить базовые шкафы прямо к стойкам стены, а не к полу.
Альтернативные типы базовых шкафов
Ведь есть еще модульные шкафы, у которых есть ножки, и их не нужно крепить к полу. Существуют также плавающие шкафы, в которых между полом и приспособлением остается большой зазор.
Как добавить высоту кухонным шкафам?
Самый простой способ добавить немного высоты — заменить столешницы на базовых шкафах. Это не потребует столько работы, как и ваш пол.Однако это может нарушить пропорции образа. Вы можете легко отрегулировать высоту кухонного шкафа при первой установке светильника.
Нажмите здесь, чтобы найти эти деревянные прокладки на Amazon.
Существуют простые инструменты, называемые регулировочными шайбами , которые представляют собой короткие и конические куски дерева. Под шкафами можно задвинуть прокладки, чтобы поднять их. Вот почему на неровном полу часто используются прокладки. Это позволяет сделать все поверхности столешницы ровными.
Однако вам может потребоваться более чем немного приподнять шкафы, чтобы они оставались ровными. Если вы действительно хотите добавить серьезную высоту, решение довольно простое. Отмерьте и положите несколько новых деревянных досок под шкафы. Обычно это делается с использованием фанеры — доски, сделанной из нескольких слоев дерева. Он экономичен и достаточно прочен для работы.
Кухонные шкафы доходят до потолка?
В большинстве случаев кухонные шкафы должны быть достаточно высокими, чтобы касаться верхней части потолка.Обычно это делается для того, чтобы максимально увеличить пространство для хранения вещей на кухне. Это может быть полезно, но имейте в виду, что до более высоких полок будет непросто добраться.
Также потенциально могут выглядеть очень странные пропорции. Если у вас базовые шкафы только стандартного размера, то наличие навесных шкафов в три раза больше может показаться странным. В этом случае однозначно будет иметь значение цветовая гамма шкафов. Это потому, что шкафы теперь занимают гораздо большую площадь на кухне.
Если вы используете правильные материалы и цвета для кухонных шкафов, они могут иметь те же преимущества, что и шторы от потолка до пола, так же подчеркивая желаемый стиль и обращая взгляд вверх к потолку. Это заставляет комнату казаться выше, чем она есть на самом деле. Вы можете прочитать этот пост, чтобы узнать, должны ли кухонные шкафы всегда касаться потолка.
Сводка
Кухонные шкафы иногда остаются незамеченными, потому что они являются частью повседневной жизни.Но если вы решили изменить стиль комнаты, заменить такое большое приспособление может оказаться непросто. И его действительно нужно установить правильно, ведь кухня будет нужна вам каждый день. Теперь вы знаете, что правильные размеры навесного шкафа определяются базовыми шкафами и столешницами. Таким образом, вы можете правильно спланировать и в кратчайшие сроки освободить все пространство для хранения!
Какова стандартная высота верхних кухонных шкафов? — Кухня
Стандарты для верхних шкафов на кухне
Показано, что эти расстояния являются эргономически практичными для людей ростом более 4 футов и оптимальными для среднестатистического пользователя 5 футов.
8 дюймов в высоту.
Со стандартным верхним шкафом 30 дюймов высотой и 12 дюймов глубиной 5 футов
Какая стандартная высота между верхними и нижними шкафами?
Высота имеет значение
Стандартное расстояние между верхней частью кухонной стойки и нижней частью навесных шкафов над ней составляет 18 дюймов. Для обычного человека это расстояние является идеальным балансом между большим пространством для работы на столешнице и возможностью дотянуться до всех полок в шкафу.
Как далеко должны быть шкафы от потолка?
Некоторые верхние шкафы доходят до потолка; некоторые нет. Высота установки зависит от количества места, необходимого между верхней частью стойки и нижней частью верхних шкафов. В большинстве домов это расстояние составляет 18 дюймов; в доступной кухне верх удобнее в 15 сантиметрах от стойки.
Как вешать верхние кухонные шкафы?
0:26
2:43
Предлагаемый клип · 62 секунды
Как повесить шкафы — YouTube
YouTube
Начало предложенного ролика
Конец предложенного клипа
Какой высоты должны быть мои верхние шкафы?
Добавьте 1-1 / 2 дюйма для стандартной столешницы и 18 дюймов для стандартной задней панели (хотя некоторые дизайнеры теперь хотят 20-дюймовую заднюю панель, чтобы освободить место для небольших приборов).С 18-дюймовым фартуком общий размер должен составлять 54 дюйма от пола до низа верхних шкафов.
Должны ли кухонные шкафы достигать потолка 9 футов?
Это только верхушка айсберга для хорошего дизайна кухни. 1) Никогда не оставляйте молдинги короны ближе 9 дюймов от потолка. Как только вы окажетесь на расстоянии одного фута от потолка, мебель и лепнина должны встретиться с потолком. Двери шкафа по обе стороны от окна бывают разных размеров.
Какова высота стандартного верхнего шкафа?
Типовые размеры кухонного шкафа
Базовые шкафы — обычно глубиной 24 дюйма (также 12 дюймов, 15 дюймов, 18 дюймов) и высотой 34 1/2 дюйма (столешницы добавляют 1 1/2 дюйма, чтобы получить готовую высоту 36 дюймов).Верхние / настенные шкафы — в основном глубиной 12 дюймов (также 15, 18, 24 дюйма) и 12, 15, 18, 24, 30 дюймов (типовые), 36 дюймов, 42 дюйма в высоту.
Должны ли кухонные шкафы доходить до потолка?
Высота потолка на вашей кухне, вероятно, самый простой показатель того, какой высоты должны быть ваши кухонные шкафы. Мебель, включая отделку, не доходит до потолка. Обычно навесные шкафы и отделка располагаются чуть ниже потолка.
Сколько места должно быть между плитой и шкафами?
Оставьте не менее 15–18 дюймов свободного пространства на одной стороне духовки.Оставьте место на столе с обеих сторон плиты или плиты — от 12 до 18 дюймов с одной стороны и от 15 до 24 с другой.
Как определить высоту установки кухонных шкафов | Руководства по дому
Для красивой кухни нужны не только красивые шкафы. Правильная установка — это разница между любительской работой и приятной для глаз. Высота шкафа не всегда задана. Необходимо учитывать измерения, выравнивание и особые обстоятельства, и некоторые домовладельцы нанимают краснодеревщика для изготовления нестандартных размеров.Сделать это правильно — трудоемкая работа, но она того стоит.
Стандартные базовые шкафы
Большинство базовых шкафов имеют высоту от 34 1/2 до 35 дюймов без столешницы. Это также верно для островов и полуостровов. Идеально ровный пол — редкость, поэтому регулировка является частью большинства работ. Шкафы должны быть ровными, даже если пол неровный. В противном случае шкафы повторяют наклон или изгиб пола, а готовая столешница повторяет неровности шкафов. Измерение стены от самой высокой точки на полу позволяет настроить все шкафы так, чтобы они соответствовали тому, который будет находиться на самом высоком уровне.Выравнивание осуществляется регулировочными шайбами под шкафами. Острова и полуострова не крепятся к стене, поэтому поместите уровень сверху и используйте прокладки.
Специальная высота базового шкафа
Некоторым домашним хозяйствам требуются более высокие или более короткие базовые шкафы. Например, столешницы, доступные для инвалидных колясок, часто имеют высоту 28 дюймов. Высота напольного шкафа уменьшается за счет толщины столешницы. Если физическое состояние требует ограниченного изгиба, стандартная высота столешницы часто бывает слишком короткой. В этих случаях 35-дюймовый шкаф работает, только если столешница регулируется и может подниматься.В противном случае лучшим вариантом могут быть более высокие базовые шкафы. Чтобы избежать изгиба, правильную высоту столешницы определяют, измеряя расстояние от пола до локтя пользователя, а высота шкафа соответственно уменьшается на толщину столешницы.
Верхние шкафы
Некоторые верхние шкафы доходят до потолка; некоторые нет. Высота установки зависит от количества места, необходимого между верхней частью стойки и нижней частью верхних шкафов. В большинстве домов это расстояние составляет 18 дюймов; в доступной кухне верх удобнее в 15 сантиметрах от стойки.Краснодеревщик может построить специальные верхние шкафы, которые плотно прилегают к потолку. В стандартных шкафах вид заподлицо достигается с помощью декоративных молдингов, таких как корона, для закрытия зазоров. Шкафы, которые не достигают потолка, являются обычным явлением, и применяется тот же интервал 18 или 15 дюймов. Некоторые верхние шкафы намного короче и предназначены для особых мест, таких как холодильник, плита или раковина. Чтобы получить нужную высоту, совместите верхние части коротких шкафов с верхними частями других в комнате.
Советы по установке
Чтобы тяжелые верхние шкафы оставались ровными до тех пор, пока они не закрепятся, отметьте горизонтальную линию на стене вдоль нижней стороны шкафа на нужной высоте, прикрепите прямую доску к стене по линии и используйте край доски в качестве направляющей и опоры.После того, как он будет удален, участок покрывается фартуком или залатывается и окрашивается. Если верхние шкафы устанавливаются перед столешницей, измерьте высоту 18 дюймов от верха основного шкафа плюс толщину столешницы, чтобы найти правильную высоту для верха.
Базовые шкафы выровнены в двух направлениях: из стороны в сторону и спереди назад. Они также прикреплены через заднюю сторону к стене и через боковые стороны друг к другу. Установите и выровняйте первый напольный шкаф в ряду и прикрепите его к стене, затем установите остальные шкафы.Верхние шкафы крепятся к стене и друг к другу, а некоторые потолочные крепления крепятся к потолку, стене и друг другу.
Ссылки
Биография писателя
Кэрол Олдройд, писатель из Восточного Теннесси, является автором множества статей по домашнему благоустройству, кадрам, кадрам и праву своими руками. Помимо получения степени в области параюридических исследований, она имеет более чем 10-летний опыт ремонта новых домов и восстановления исторической собственности.
Проектирование кухни с потолком 8 футов
Есть два варианта проектирования шкафов для кухни с более низким потолком.Вы можете использовать верхние шкафы высотой 36 дюймов, что позволяет использовать карниз вдоль верха, или вы можете использовать верхние шкафы высотой 42 дюйма, которые доходят до потолка без какой-либо лепнины. Ниже приводится разбивка плюсов и минусов каждого варианта.
Использование высоких верхних шкафов высотой 36 дюймов
Это, безусловно, самый безопасный выбор при проектировании потолка около 8 футов. Шкафы не доходят до потолка, что дает вам возможность добавить молдинг. Размер молдинга зависит от вас.Если вы выберете профиль короны меньшего размера, над шкафами останется небольшое пространство. Если вы предпочитаете не заморачиваться с этим, добавление подступенка и более крупного профильного карниза устранит пространство и создаст иллюзию того, что шкафы доходят до потолка. Это может быть вашим лучшим эстетическим выбором.
Вот рабочий чертеж кухни с 8-футовым потолком. Этот дизайн показывает лепнину короны поверх верха высотой 36 дюймов и небольшое пространство между короной и потолком.
Вот та же кухня с подступенком, добавленным ниже карниза, который доводит шкафы до потолка.
Молдинг подступенка выделен красным.
Использование 42-дюймовых высоких верхних шкафов
Некоторые люди полностью сосредоточены на том, чтобы на кухне было как можно больше места для хранения вещей, и выбор 42-дюймовых верхних шкафов определенно даст вам больше места. Это также помогает сделать потолок больше, поскольку шкафы касаются потолка.Но будьте осторожны, дополнительное пространство имеет несколько оговорок. Есть большая вероятность, что ваш потолок не будет полностью выровнен во всех местах, поэтому могут потребоваться шпатлевки и дополнительная работа, чтобы верх выглядел ровным. С большими верхними шкафами вы также теряете возможность использовать декоративный карниз. Если вы хотите хоть немного декоративной лепнины, вам придется немного опустить шкафы, что не идеально. Корона — это просто декоративный элемент, но он действительно завершает пространство и, возможно, не то, чем вы хотите жертвовать.
Что еще нужно подумать
Если вы планируете разместить на кухне кладовку от пола до потолка и решили использовать 42-дюймовые верхние шкафы, то высота согласованного высокого шкафа составляет 96 дюймов. Итак, теперь вы пытаетесь установить шкаф того же размера, что и ваш потолок. Это может стать практически невозможным для установки в вертикальное положение, поскольку необходимое для этого диагональное измерение составляет около 100 дюймов или более.
Чтобы получить этот дополнительный зазор в дюймах, из шкафа часто приходится удалять носок или даже верхний задний угол шкафа с выемкой.Кроме того, если вы решите уменьшить высоту фартука, чтобы добавить небольшой молдинг ¾ дюйма, который освободит еще больше места, вам нужно попытаться вычесть из высоты шкафа, чтобы все это поместилось. Таким образом, с 8-футовыми потолками, 90-дюймовым потолком Шкаф практически обязателен для обеспечения правильной подгонки и возможности установки шкафа. Даже если вы пожертвовали декоративной лепниной ради большего пространства, стоит принять во внимание именно этот шкаф.
Не можете спроектировать свою 8-футовую кухню? Обратитесь к нашим дизайнерам кухни сегодня! Наши сотрудники профессиональных дизайнеров кухонь бесплатно помогут вам спроектировать вашу кухню.Они предоставляют 3D-изображения, подробные цитаты, советы экспертов и многое другое!
Отправить запрос на дизайн
Какая стандартная высота для верхних кухонных шкафов?
Какой стандартный размер для верхних кухонных шкафов?
Средние настенные или верхние кухонные шкафы имеют высоту 30–42 дюймов, глубину 12–24 дюймов и ширину 9–36 дюймов.
Мойка какого размера поместится в 30-дюймовом шкафу.
В зависимости от типа мойки это может быть разным.
Какая высота лучше всего подходит для кухонных шкафов?
Решено! Как найти правильную высоту верхнего шкафа Идеальная высота верхнего шкафа составляет 54 дюйма над полом.Другими словами, повесьте верхние шкафы на 18 дюймов выше верхней части столешницы. Уменьшите высоту до 48 дюймов от земли, чтобы разместить людей с ограниченной подвижностью. Дополнительные предметы…
Стоят ли 42-дюймовые шкафы?
Стоят ли шкафы 42 дюйма? На наш взгляд, ДА, особенно если вы время от времени уже используете табуретку для доступа к вашей нынешней верхней полке. Вы увеличите место для хранения на 25%, добавив еще одну полку. Люди, у которых есть дополнительное место для хранения, могут хранить вещи, которые они не очень часто используют, в дополнительных шкафах наверху.
На какой высоте верхние шкафы должны быть над прилавком?
18 дюймовНа какой высоте следует вешать навесные шкафы над прилавком? «Стандартное расстояние от верха стойки до низа настенного шкафа составляет 18 дюймов», — говорит Скотт. «Но мы придерживаемся эстетики скандинавского дизайна и часто ставим шкафы выше — скажем, на 24 дюйма над прилавком или даже больше.
Какая стандартная высота между верхним и нижним шкафами?
18 дюймов Стандартное расстояние между верхней частью кухонной стойки и нижней частью навесных шкафов над ней составляет 18 дюймов.Для обычного человека это расстояние является идеальным балансом между большим пространством для работы на столешнице и возможностью дотянуться до всех полок в шкафу.
Должны ли верхние кухонные шкафы доходить до потолка?
Самым четким показателем того, какой высоты должны быть кухонные шкафы, является высота потолков. … Кухонные шкафы и молдинг не доходят до потолка, а навесные шкафы и обшивка будут чуть ниже потолка. Любой карниз или отделка будет продолжаться по всей комнате над шкафом.
Какой стандартной ширины вы можете купить кухонные шкафы?
Высота, глубина и ширина основного шкафа Высота, без столешницы 34 1/2 дюйма Высота, со столешницей от 35 до 36 дюймов Глубина (от передней до стены), без столешницы 24 дюйма Глубина, со столешницей от 25 до 26 дюймов Стандартная ширина 12, 18, 24, 30, 33, 36, 48 дюймовSep 22, 2020
Сколько места нужно между верхней частью холодильника и шкафом?
Для холодильника потребуется минимальное расстояние 2 дюйма от задней стенки, 1 дюйм от верхнего шкафа и 1/8 дюйма с каждой стороны холодильника.
Как заполнить зазор между кухонными шкафами и потолком?
Вы можете построить шкафы до потолка (самый дорогой вариант), оставить пространство открытым (бесплатно!), Соорудить потолок в тон шкафам или добавить потолок из гипсокартона.
Почему кухонные шкафы не доходят до потолка?
Доступ к шкафам с высотой до потолка затруднен, так как они находятся очень высоко в потолке. Все, что находится наверху этих шкафов, довольно сложно получить, поэтому вам нужно будет на что наступить, чтобы добраться до этих вещей.Это также создает очень серьезные проблемы с безопасностью.
Должны ли выровняться верхние и нижние кухонные шкафы?
К счастью, существует несколько правил размещения шкафов. Верхний и нижний шкафы могут быть выровнены на каждом конце, что иногда и происходит. Однако выровнять каждый верхний и нижний шкаф по всей комнате бывает редко. Пока шкафы установлены надежно, подойдет практически все.
Насколько должно выступать островное сиденье?
Типичный выступ для удобной зоны для сидения должен составлять около 25-30 см (10-12 дюймов), это должно оставлять достаточно места для коленей и достаточного пространства между краем столешницы и сидящим человеком.Таким образом, с увеличением глубины свеса увеличивается комфорт и удобство использования руля.
Какая стандартная высота кухонного шкафа?
Навесные шкафы: Повесьте на стену. Стандартная высота кухонного шкафа: 12, 15, 18, 30, 36 и 42 дюйма; глубина колеблется от 12 до 18 дюймов. Обычно устанавливается на 18 дюймов над столешницей, на 54 дюйма над полом и на 24 дюйма над плитой.
Высота потолка Общее практическое правило — настенные шкафы монтируются так, чтобы нижний край находился на 54 дюйма над полом, что означает, что потолок высотой 8 футов создает 42 дюйма доступного пространства для навесных шкафов, в то время как Потолок высотой 9 футов имеет 54 дюйма.
Как раздвинуть шкафы до потолка?
Основные шаги, которые я предпринял, чтобы раздвинуть шкафы до потолка: Установить деревянные планки на потолок. … Отрежьте лист мдф 4 × 8 по ширине и используйте его для изготовления лицевой панели. … Нарезать накладку из МДФ на «обрамление» передней панели. … Переустановите имеющийся карниз. Заполните отверстия для гвоздей и заделайте швы. Сентябрь 29, 2018
Как заполнить пространство над кухонными шкафами?
Добавьте фанеру к раме 2 × 2 над шкафами. Измерьте расстояние между потолком и кухонными шкафами.Затем отрежьте кусок фанеры 1/4 дюйма до этого размера без 1/4 дюйма, чтобы вы могли легко переместить его в пространство. На самом деле, мы распиливали фанеру в магазине товаров для дома.
Как правильно измерить высоту верхнего шкафа по счетчику
Среди множества вопросов, которые домовладельцы задают перед ремонтом кухни, идеальная высота верхнего шкафа, вероятно, является одним из наиболее часто задаваемых. Какое должно быть расстояние между столешницей и верхними шкафами? Какая стандартная высота навесного шкафа? Какие существуют варианты высоты верхнего шкафа?
Эргономика — ключевой компонент модернизации кухни — если вы не знаете, на какой высоте установить верхние шкафы, позже вы пожалеете об этом.Установка навесных шкафов для многих может оказаться непростой задачей. По мнению экспертов по кухонным шкафам, они должны быть достаточно низкими, чтобы пользователи могли дотянуться до полок, и достаточно высокими, чтобы столешница не казалась тесной.
Вот несколько факторов, которые определяют правильную высоту верхнего шкафа на вашей кухне:
- Высота цокольных шкафов
- Толщина столешницы
- Высота фартука
- Высота диапазона
Plus, измерение правильной высоты также зависит от того, устанавливаете ли вы верхние шкафы до или после установки базовых шкафов и столешницы.
# 1 — Высота верхнего шкафа от прилавка: Идеальная высота верхнего шкафа позволяет пользователю среднего роста удобно дотянуться до полок, без табурета или вытягивая руки или спину.
# 2 — Высота верхнего шкафа от пола: Идеальная высота верхнего шкафа от пола составляет 54 дюйма, что рассчитывается от пола до нижнего края навесных шкафов.
# 3 — Стандартная высота верхнего шкафа: Расстояние между «верхом столешницы» и нижним краем навесных шкафов должно составлять 18 дюймов.
# 4 — Высота верхнего шкафа от пола: Если один из членов вашей семьи имеет небольшой рост или физическое состояние не позволяет ему дотянуться до полок шкафа на рекомендуемой высоте (54 дюйма), подумайте об уменьшении расстояния на пару дюймов. Например, нижняя часть верхних шкафов может находиться на высоте 48 дюймов от земли и 14 дюймов от верхней части столешницы.
# 5 — Высота верхнего шкафа над плитой: Высота верхнего шкафа над рейнджером даже больше, чем высота стандартного навесного шкафа.Почему? Многие горючие шкафы представляют большую опасность, если не будет достаточного зазора между диапазоном и нижней частью верхних шкафов. По соображениям безопасности сохраняйте расстояние 66-72 дюйма между полом и шкафами выше диапазона.
Когда следует увеличить высоту верхнего шкафа
Хотя стандартная высота верхних шкафов рекомендуется на уровне 18 дюймов от столешницы, существуют сценарии, когда вы делаете исключения для улучшения функциональности и больших преимуществ.
Поднимите планку для более высоких домашних поваров
Хотя стандартный 18-дюймовый рост является нормой для большинства домашних хозяйств, он не обязательно может быть «лучшим» для всех. Когда домашний повар выше, чем, скажем, пять футов десять дюймов, верхние шкафы должны быть установлены выше рекомендованной высоты. Это не только помогает им более четко видеть счетчик, но и дает им достаточно места для работы с оптимальной эффективностью.
Оставьте место для локтя над раковиной с высокими смесителями
Высокие смесители с изогнутым горлышком — это растущая тенденция среди домовладельцев в наши дни.Они очень функциональны и стильны. Однако, когда верхние шкафы установлены на стандартной высоте над раковиной, использование этих смесителей может стать проблемой. Поэтому правильная высота верхней части шкафа над раковиной, особенно в таких случаях, должна составлять 24–30 дюймов от столешницы.
Сделайте больше квадратных метров для фартука
Кухонный фартук — это гораздо больше, чем просто защита вашей стены от пятен и брызг. Это факт, который делает ваше пространство красивым и приятным.Увеличение высоты верхних шкафов дает больше места для фартука, что придает кухне привлекательный вид.
Сделайте визуальный перерыв между нижним и верхним шкафами
Темные кухонные шкафы являются горячим фаворитом среди многих домовладельцев, которые хотят иметь изысканность в своем кухонном пространстве. Поскольку темные шкафы, как правило, выглядят подавляющими в некотором декоре, важно поддерживать надлежащее расстояние между основными шкафами и верхними шкафами и включать заднюю панель для визуального перерыва.
Когда вы используете двухцветные кухонные шкафы
Двухцветные кухонные шкафы в наши дни становятся все более популярными. Это отличный способ добавить на кухню индивидуальности, не нарушая при этом больших расходов. Если вы выберете смелую отделку для верхних шкафов с базовыми шкафами контрастного цвета, вы захотите сохранить идеальное расстояние между двумя, чтобы внести некоторый баланс в свой декор.
Создание подвесного хранилища под верхними шкафами
Стена над прилавком предлагает отличное место для хранения вещей.Если вы хотите иметь быстрый доступ к некоторым обычным кухонным инструментам, таким как шпатели, ковши и рукавицы для духовки, установка подвесной планки на фартуке — отличная идея. Однако, если используемые вами инструменты выше стандартной высоты верхних шкафов, вы захотите установить настенные шкафы немного выше.
Чтобы определить идеальный размер, возьмите самый длинный инструмент, который вы используете, и добавьте 3–4 дюйма для подвесной дуги.

Если есть перекос, подтягиваем или ослабляем регулировочные винты.
Второй вариант – плотно прижать брусок к стенке шкафа там, где будет выходить сверло. Теперь можно стянуть шкафы и приступать к следующему пункту.
Да и готовить, мыть посуду, согласитесь, не комфортно, если лбом все время упираетесь в шкаф. Выход – глубина нижней тумбы больше, нежели верхней.