На какой высоте крепить вытяжку: стандарты безопасности и правила проектирования
стандарты безопасности и правила проектирования
Кухонная вытяжка используется для очищения собирающегося над плитой воздуха от частицы пыли и жира, переработанного газа, копоти. А высота вытяжки над газовой плитой и другими видами варочных поверхностей влияет на качество работы прибора и его эффективность.
Как правильно рассчитать высоту между вытяжкой и плитой? Что влияет на высоту? Есть ли какие-то стандарты? И что будет, если их не соблюдать? Все эти вопросы мы детально рассмотрим в нашей статье, акцентировав внимание на видах вытяжек для кухни и правилах проведения расчетов и замеров.
Содержание статьи:
Виды кухонных вытяжек
Вытяжки используются для принудительного забора продуктов горения, различных примесей (оксид азота, углекислый газ, разные канцерогены) и неприятного запаха, появляющихся в воздухе во время приготовления пищи. Функционирует такая система по принципу пылесоса.
Стандартная вытяжка состоит из таких элементов: корпус, электродвигатель, воздухозаборник, система вентиляции, (иногда и угольные) фильтры.


Островная вытяжка – это идеальное решение для больших кухонь, а также широких плит и варочных поверхностей. В этой ситуации важно учитывать рост повара
По способу выведения переработанного воздуха приборы бывают и проточные. В первом случае воздух после очищения и фильтрации снова попадает в помещение, а во втором выводится на улицу. Циркуляционные подойдут, если в доме нет вентиляции.
Не так давно стали появляться вытяжки, сочетающие в себе эти две технологии работы с воздухом.
По способу установки вытяжки бывают нескольких типов. Островные, их крепят на потолке. Угловые закрепляются в углу кухни. Такие модели подойдут для малогабаритных кухонь.
Что касается монтажа, то модель вытяжки легко скрыть в подвесном шкафу. Купольные закрепляются на стене. Они отлично дополнят интерьер, но, зачастую, бывают больших размеров.


Встраиваемая вытяжка подойдёт для кухни любых размеров. Её монтируют в специальном шкафу. Мебель для этого изготовляют под заказ или переделывают уже имеющуюся
Общие рекомендации по безопасной установке
Но чтобы любая модель вытяжки работала качественно и выполняла свои функции, её необходимо правильно установить. Эту задачу лучше доверить профессионалам.
Так, на высоту положения вытяжки влияют такие факторы:
- стандартные рекомендации;
- тип плиты или варочной поверхности;
- наличие или отсутствие вентиляции, также её мощность;
- производительность прибора;
- габариты вытяжки;
- рост пользователя.
Так как основная задача прибора очищать воздух над варочной поверхностью, то во время подсчёта высоты основываться стоит, в первую очередь, на тип и размеры самой плиты.
Плиты бывают: газовые, электрические, индукционные и галогенные. Особенностью последних считаются Hi-Light конфорки.
Для эффективной работы вытяжка должна полностью покрывать площадь варочной поверхности. Благодаря этому весь загрязнённый воздух будет перерабатываться. Если плита будет шире, то вредные примеси и лишние запахи так и останутся на кухне.
Из соображений пожарной безопасности были разработаны стандартные параметры высоты между вытяжкой и конфорками.
При их составлении учитываются тип плиты, и конструкция нижней части вытяжки. Она может быть прямой или наклонной.
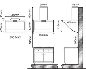
Для газовых плит высота от конфорок до прямой вытяжки – от 75 до 85 см, а до наклонной – 55-65 см.
Для электрических, индукционных и галогенных поверхностей высота от конфорок до прямой вытяжки – от 65 до 75 см, а до наклонной – от 35 до 45 см.


Такая разница в высоте объясняется отсутствием или наличием открытого огня и риском воспламенения частиц жира и копоти на фильтрах
Часто производитель сам прописывает необходимую высоту. Это продиктовано особенностями материалов, из которых выполнены фильтры и сам прибор. Материал может быть особо устойчивым к пламени и/или иметь какие-то особенности.
От установленных стандартов можно отклониться максимум на 5-10 сантиметров. Расстояние можно только увеличивать, а уменьшать лишь в том случае, если позволяет мощность и требует рост повара. В любом случае, пред окончательным решением стоит посоветоваться со специалистом.
Профессиональная установка позволит прибору лучше и качественнее выполнять свои функции (вытягивать всё лишнее и очищать воздух), а также сэкономит электроэнергию, так как не придётся включать вытяжку на максимальную мощность.
Кромке того, на высоту между вытяжкой и варочной плитой влияет производительность самой вытяжки. Иногда этот показатель называют мощностью и измеряют в куб. м/час. Перед покупкой вытяжки стоит вычислить хотя бы примерное значение.
От производительности напрямую зависит качество очищения воздуха. Также, если устройство обладает достаточной мощностью, то можно регулировать высоту вытяжки над варочной поверхностью.


Стоит отметить, что на мощность также влияет наличие или отсутствие вентиляции, количество курящих членов семьи. Дополнительные заломы и прямые углы воздуховода могут лишь снизить производительность и повысить шумность вытяжки
№1 — установка вытяжки над газовой плитой
К приборам, которые устанавливаются над газовой плитой выдвигается множество требований. Для начала, необходимо точно измерить расстояние от нижней части устройства до варочной поверхности. Как уже говорилось выше, оно должно быть в пределах 75-85 см.
Это расстояние немного больше, чем при установке прибора над электрической моделью по той причине, что открытый огонь может воспламенить фильтры вытяжки, особенно если те сильно загрязнены.
Также не следует забывать о том, что в случае с газовыми плитами обязательно должна работать естественная вентиляция. Поэтому при монтаже нельзя полностью перекрывать вентиляционное отверстие на кухне.
Чтобы этого избежать, можно приобрести специальные решетки для воздуховодов, разделенные на две части: одна для , а другая – для естественной вентиляции.
Очень важным параметром является и мощность вытяжки. Перед приобретением агрегата необходимо ее точно рассчитать. Немного ниже будет написано о том, как правильно это сделать.


Проведя необходимые расчеты и замеры стоит помнить, что нельзя покупать устройство меньшей мощности, чем полученная при расчетах. В противном случае это будут просто выброшенные на ветер деньги, такое устройство не будет справляться с поставленной перед ним задачей
Хотите своими силами установить вытяжку над газовой плитой? В таком случае рекомендуем посмотреть по монтажу.
№2 — расстояние до электрической плиты
К электрическим моделям выдвигаются более лояльные требования. В первую очередь, это касается высоты установки вытяжки над устройством – ее можно немного уменьшить, поскольку эти модели считаются более безопасными в эксплуатации, чем газовые экземпляры.
Если помещение кухни небольшое, то оптимальным вариантом будет остановить свой выбор на встроенной или плоской модели вытяжки. Помимо удобства, цены на подобные устройства по карману большинству граждан.
Еще одним немаловажным фактором, который требуется учитывать размещая прибор над варочной поверхностью – это габариты печки. Так, ширина и длина вытяжки не должны быть меньше этих же параметров плиты. В противном случае, на мебели будут накапливаться жир и копоть.
Подробные инструкции по монтажу кухонной вытяжки своими силами мы привели в этой .


Вытяжку над электрической плитой можно размещать немного ниже, чем над газовой, поскольку первые немного безопаснее в эксплуатации
Проведение замеров и расчетов
Как видно, учесть все факторы и провести точный расчёт достаточно сложно. Но нужно постараться, чтобы не жалеть о приобретении прибора, который не справляется с возложенными на него задачами.
Существуют критерии, разработанные производителями:
- Прибор с производительностью от 200 до 300 куб. м/час подойдёт для тех, кто готовит немного или кухня небольших размеров. То есть постоянно используется 1-2 конфорки.
- Вытяжка с производительностью от 300 до 400 куб. м/час рекомендуется для семей из 3-4 человек, или для кухни средних размеров, а так же там, где ежедневно пользуются 2-3 конфорками.
- Прибор с производительностью 500-600 куб. м/час очистит воздух в большой кухне, покроет потребности многодетной семьи. Такая вытяжка будет незаменимой, если плита активно используется ежедневно и включены все конфорки (их может быть 5-6).
Для ориентировочных показателей можно использовать специальные таблицы или данные от производителей.


Для быстрого расчёта производительности используют два значения, площадь кухни и высоту потолков. Эти приблизительные данные можно умножить на коэффициент плиты
Если у кухни нестандартные размеры или её площадь не превышает 40 куб. м, то рассчитать эту величину для конкретного помещения просто перемножив длину кухни на ее ширину и на высоту потолков. Полученный результат нужно умножить на 10 или 12
Числа 10 или 12 – это неизменные коэффициенты, основанные на санитарных нормах. Они означают, что воздух должен очищаться каждые 5 минут, то есть 10-12 раз в час. Поэтому производительность превышает объём кухни минимум в 10-12 раз.
Иногда этот коэффициент повышается из-за частоты включения и особенностей используемой плиты. Например, для газовой плиты с большими конфорками, которые включают каждый день, это число может достигать 20. Для электрической плиты можно приметь коэффициент 15.


Если плита нестандартная и готовят ежедневно, то для расчёта производительности стоит использовать дополнительные коэффициенты для этажности, для плиты, для курящих. Но не следует приобретать устройство с большим запасом мощности
Например, длина и ширина кухни составляют 2 и 3 м соответственно, а высота потолков 2,5 м.
Поэтому, ориентировочная производительность будет составлять: 2 * 3 * 2,5 * 10 = 150 куб. м/час.
Это показатель можно умножить на коэффициент этажности 1,3. Он соответствует санитарным нормам.
Если на кухне кто-то курит, то к производительности прибавляется ещё 15% на каждого курящего от общего числа.
Полученные данные верны для замкнутых помещений. Если кухня не закрывается дверью, а отделена от других комнат проходом, то следует прибавить ещё 30% от полученной мощности.
У нас на сайте есть подробные инструкции по вытяжки для кухни.
Следующим показателем считается рост повара. Очень важно, чтобы вытяжка не задевала голову и не мешала дотягиваться до дальних конфорок или ставить большие кастрюли.
Поэтому перед покупкой и монтажом сделайте замеры и смоделируйте процесс работы за плитой. Чтобы не допустить ошибок при проведении замеров помните, что наклонную вытяжку измерять следует от самой нижней точки до конфорок.
Все прямые вытяжки (купольные или встроенные) следует измерять от фильтров до поверхности плиты.


Наклонные вытяжки специалисты рекомендуют выбирать для электронных, галогенных и индукционных плит. Они не требуют много места и отлично справляются с очищением воздуха
Также следует учесть и длину вытяжки. Определите, на сколько она будет выступать вперёд над варочной поверхностью, насколько будет удобно готовить и заменять и жировые фильтры, а также мыть плиту и дотягиваться до дальних конфорок.
Все описанные факторы, влияющие на расстояние, должны быть согласованы. Иначе есть риск того, что вытяжка не будет справляться со своими задачами. Даже самое мощное устройство, установленное слишком высоко, не справится со всеми примесями в воздухе. Или же копоть, осевшая на нижней части слишком низко установленной вытяжки, может воспламениться.
Грамотный выбор высоты установки продлит срок службы вытяжки, позволит устройству работать на полную силу с минимальными затратами. В худшем случае прибор может не справляться со своими функциями или просто сгореть.
Что еще учесть при монтаже?
Перед установкой следует учесть особенности подключения устройства к сети.
Любая вытяжка подключается к электросети. Поэтому розетку следует устанавливать на высоте 2 -2,5 метра от пола и на 15-25 см выше навесных шкафов.
Такая розетка обязательно должна быть с заземлением, чтобы вытяжка не сгорела из-за скачков электричества. Никогда не монтируйте розетку на одной линии с воздуховодом. Ориентируйтесь где-то на 15-20 см от него.
Также во время проведения замеров стоит учесть и расстояния к боковым шкафам. Ориентируйтесь на 5-10 см в обе стороны.
Схемы расположения розеток на кухне и тонкости их монтажа своими руками мы привели в .


Во время проведения расчётов очень важно учитывать все предметы мебели и проводку на кухне и начертить схему расположения каждого предмета
Для примера рассмотрим конкретную ситуацию. Купольную вытяжку необходимо установить над газовой плитой с 5 конфорками в кухне площадью в 31 куб. м, высота потолков 2,8 м. На плите готовят ежедневно, кухня закрывается дверью.
Для начала узнаем ориентировочную мощность. Коэффициент возьмём 20 из-за количества конфорок и частоты использования плиты: 31 * 2,8 * 20 = 1736.
Таким образом, для этой кухни необходима вытяжка с мощностью не меньше 1800 куб. м/час.
Пользоваться плитой будет человек с ростом 170 см, высота плиты 75 см, а высота вытяжки 60 см. Поэтому, сопоставляем все данные и получаем приблизительный диапазон 77-80 см для высоты вытяжки.
Подобные расчёты проводить важно, чтобы не допустить ошибок при монтаже. Но лучше всего, если будет возможность проверить условное расположение техники на кухне и удобство её использования.
Выводы и полезное видео по теме
Из видеоролика можно узнать, на какой высоте стоит монтировать вытяжку и почему важно придерживаться таких норм:
Высчитать необходимую высоту вытяжки над поверхностью плиты важно для каждого случая. Воспользуйтесь приведенными в статье советами, проведите подсчёты и тогда на вашей кухне всегда будет свежий и чистый воздух.
У вас остались вопросы после прочтения нашей публикации? Задавайте их в блоке комментариев – наши эксперты постараются вам помочь.
А может у вас есть замечания, дополнения или вы заметили неточности в изложенном выше материале? Напишите нам, пожалуйста, об этом ниже под статьей.

Функциональные способности домовых вытяжных вентиляционных каналов практически всегда оставляли желать лучшего. Они не справлялись со своей основной задачей – вытягиванием из помещения кухни отработанного воздуха и неприятных запахов. Именно поэтому впоследствии были изобретены такие полезные и необходимые устройства, как вытяжки, которые действовали намного эффективнее каналов. Собираясь монтировать новое кухонное оборудование, многие задумываются, на какой высоте вешать вытяжку? А это имеет значение. От высоты, на которой будет закреплено устройство, зачастую зависят производительность и качество его эксплуатации.
Конструкция стандартной вытяжки
Точнее представлять расположение вытяжки можно, если хотя бы немного разбираться в ее устройстве. Стандартная вытяжка состоит из следующих элементов:
- Стальной корпус;
- Двигатель;
- Крыльчатка двигателя;
- Фильтр;
- Устройство управления.

Стандартная высота установки вытяжки
Можно выставлять режимы для работы вытяжки. Их всего два – фильтрация (рециркуляция) и вывод воздуха в канал вентиляции.
Типы вытяжек
Существуют четыре основных типа кухонных вытяжных шкафов:
- Настенные вытяжные шкафы;
- Островные вытяжки;
- Встраиваемые конструкции;
- Настольные устройства.
Первый тип имеет вид зонта с трубой, который закрепляют на стене там, где его хорошо видно. Поэтому дизайн его должен подходить к интерьеру кухни. Внешне он очень напоминают дымоход от камина.
Устройства островного типа чаще всего крепят к потолку. Их применяют в том случае, если интерьер кухни продуман так, что плита находится по центру помещения. Данная модель работает только в одном режиме, по принципу отвода воздуха.
Встраиваемые приборы помещают внутрь шкафов. Они скрыты от глаз, поэтому их можно не отделывать слишком тщательно. Их технические характеристики не хуже, чем у других моделей, но стоят они немного дешевле.

Расчёты высоты установки вытяжки
Настольные конструкции встраивают в саму варочную панель. Они выглядят как еще одна секция панели. Из-за того, что данная модель находится в непосредственной близости от источника грязного воздуха, качество очистки обычно на высоте.
Как определить высоту крепления вытяжки
Очень часто для того, чтобы определить оптимальную высоту крепления вытяжки, достаточно заглянуть в инструкцию к данной модели устройства. Обычно указывается не определенное расстояние, а диапазон, в пределах которого и должно помещаться вытяжное оборудование для кухни.
При этом следует учитывать такие немаловажные факты, как рост хозяйки квартиры и особенности интерьера кухни. Но даже, в случае утери инструкции, есть другой выход. Существуют стандарты, благодаря которым можно более четко определиться с тем, на какой высоте должна помещаться кухонная вытяжка над варочной панелью, либо плитой.
Нужно учитывать тип варочной поверхности, для каждого типа существуют свои мерки. Итак, на какой высоте рекомендуется вешать вытяжку:
- Над газовой плитой ее размещают на высоте 75-85 см,
- Над электроплитами – на высоте 65-75 см.
Если вы выбрали наклонную модель, то расстояние от ее нижней части до варочной поверхности должно составлять примерно 55-65 см для газовых плит, и около 35-45 см – для электроплит.
Высота может меняться, но только в пределах указанных 10 см, а также в зависимости от мощности конкретной модели и ее технических характеристик. Не стоит пренебрегать данными ограничениями, от этих показателей зависит не только качество работы техники, но и безопасность работы, в частности пожарная безопасность.
Основные правила установки вытяжки
Более качественная работа устройства возможна только при условии, что вытяжка полностью покрывает поверхность плиты. В этом случае, загрязненный воздух будет практически полностью поглощаться, а его утечка будет минимальной. Это основная причина, почему покупатели предпочитают модели с более широким зонтом, от 60 до 90 см. Этот размер соответствует размеру стандартной плиты или панели.
Высота размещения вытяжного зонта определяется в соответствии с эргономическими правилами и нормами пожарной безопасности. Чем меньше расстояние от зонта до варочной панели, тем лучше будут поглощаться кухонные испарения и плохие запахи. Но в то же время, высота не должна быть слишком малой, иначе высок риск возникновения повреждения системы вентиляции. Это может произойти по причине перегрева или даже возгорания жирной пленки, которая образуется на поверхности фильтра.
Поэтому из соображений безопасности минимальное расстояние от плиты до зонта должно быть около 50-65 см. Значения могут незначительно колебаться. Часто оптимальная высота монтажа вытяжки указана в техпаспорте. Из соображений эргономики она должна располагаться так, чтобы не мешать готовить пищу.

Параметры для установки вытяжки по высоте
Варианты монтажа вытяжки
Существует несколько способов монтажа. Первый предполагает размещение вытяжного устройства внутри подвесного шкафа, у которого отсутствует дно. К центральной полке крепят вытяжное устройство. В этой же полке, а также в потолке шкафа проделывают отверстия для вывода шланга.
Один из концов шланга прикрепляют к вытяжке, а другой просовывают в отверстия и выводят в вентиляционный канал. В режиме фильтрации шланг обрезают при выходе из дыры в потолке шкафчика.
Встроенный тип вытяжки монтируется по схеме, которая представлена в инструкции к ней. Модель рассчитана на установку в короб, либо в подвесной шкафчик.
Вытяжка, прикрепленная к днищу шкафа
В днище кухонного шкафчика, а также в потолочной полке проделывают отверстие под шланг. Для осуществления отвода в вентиляцию шланг подводят к самому отверстию вентиляционной отдушины.
Для режима фильтрации его обрезают при выходе из отверстия потолочной полки шкафа. Вытяжку прячут за панелью, материалом для нее является материал идентичный тому, из которого сделаны дверцы шкафа.
Монтаж вытяжки в подвесном шкафу
В днище шкафа проделывают отверстие, размер которого соответствует размеру кухонной вытяжки. Остров вытяжки прячут в шкафчик. Крепление осуществляется при помощи отверстий в нижней кромке, при помощи которых вытяжку прикручивают к дну шкафчика.

Кухонная вытяжка установлена правильно
В полке, расположенной посередине шкафа, а также в потолке проделывают отверстия для прохода шланга, один край которого крепят к вытяжке, а другой – просовывают в отверстие в центральной полке и потолке. В режиме, когда воздух выводится в вентиляционную отдушину, шланг проводят в него, а в режиме фильтрации наоборот обрезают около выхода из отверстия.
Правила установки вытяжки с воздуховодом
Данный тип установки предусматривает воздуховод большего диаметра и без сгибов. Воздуховоды должны быть изготовлены из фольги с большей толщиной, тонкая фольга будет шелестеть при движениях воздуха. А ПВХ короба более гибкие, их использование еще более выгодно. Лучше, если их форма будет круглой и без изгибов. Они имеют отличную шумоизоляцию и не сопротивляются воздуху.
Ни в коем случае не сужайте проход для воздуха, не цепляйте переходники, которые будут его задерживать. Необходимый объем воздуха должен проходить за определенный промежуток времени. В случае, если на пути будут встречаться препятствия и узкие участки, двигатель вытяжки будет прибавлять обороты. Из-за этого он больше изнашивается, в воздуховоде создается лишний шум.
Подключая вытяжку к шахте вентиляции, для преодоления этих препятствий используют режим фильтрации. Для того чтобы грязный воздух более эффективно покидал кухонное помещение, существует крайний способ – это проделать сквозное отверстие в стене над поверхностью вытяжки.
Красиво декорировать такое устройство можно при помощи поливинилхлоридных коробов. Замаскировать гибкий воздуховод можно при помощи такого короба из гипсокартона.
К сожалению, люди не всегда помнят о том, что вытяжные шкафы также нуждаются в чистке, поэтому на них скапливается жир и пыль. В случае если высота при установке вытяжки не достигает 80 см, то может произойти возгорание фильтра от открытого пламени печи.
В любом случае бытовой вытяжке в целях безопасности нужно обеспечить хорошее заземление. Из-за постоянных скачков напряжения в сети, может перегореть ее двигатель, либо электронный управляющий блок. Еще одна проблема – из-за нагревания может произойти спонтанное включение вытяжного оборудования. Большинство людей все же решаются на приобретение современной вытяжки, которая становится одним из важнейших устройств на кухне, избавляющим пространство от неприятных запахов и угара.
Вытяжка защищает кухню от копоти и жира. Есть несколько простых рекомендаций по ее установке. Чтобы точно знать, на какой высоте вешать вытяжку над газовой плитой, сначала надо определиться, какая модель подойдет к интерьеру и выбрать из огромного количества существующих вариантов. Потом можно вникать в тонкости монтажа.


Содержание статьи
На какой высоте необходимо вешать вытяжку над газовой плитой?
Вытяжка играет роль санитара на кухне, поглощает неприятные запахи, обеспечивая свежий воздух. Она же отвечает за отсутствие загрязнений на кухонной мебели, стенах и потолке.
Какую модель установить это выбор вкуса. Кухня с готовым интерьером и встроенная мебель заведомо предполагает наличие современной вытяжки. Выпускаемые модели зависят от следующих факторов:


- Цена вопроса;
- Интерьер, мебель, кухонный дизайн;
- Объем помещения. Чем больше помещение тем больший объем вытяжки.
Подвесные вытяжки относительно просты в установке. Рабочая площадь должна быть равна площади варочной поверхности.
На какой высоте вешать вытяжку над газовой плитой? Какую бы модель не выбрали, от газовой плиты необходимо отступить 75-85 см. Если установить ближе, возникает пожарная опасность. С другой стороны, вытяжка будет работать вхолостую, если установить дальше и выше.
Перед установкой обязательно надо ознакомиться с рекомендациями производителя. Инструкция дает более точное представление об установке вытяжки по отношению к самой плите. В рекомендациях всегда указывается минимальная высота для конкретной модели.
Горизонтальная


Крепится на стену над варочной поверхностью, под подвесной кухонный шкаф, к потолку. Устройство такого типа позволяет экономить место. Чтобы установить горизонтальную вытяжку надо:
- Прочертить на стене границу основания вытяжки;
- Отметить места креплений;
- Высверлить отверстия для крепления;
- В дюбель не до конца закрутить шурупы, оставляя 1 см;
- На шурупы вешается вытяжка и проверяется по уровню;
- Если смотрится ровно, шурупы закручиваются до конца. .


После того, как произведен основной монтаж, и модель прочно закрепилась, устанавливается гофра. Ее обязательно необходимо затянуть хомутом. Иначе, труба будет пропускать гарь на кухню. В конце монтажа гофру закрывают декоративным коробом и проверяют работоспособность с помощью обычного листа. Если воздушная струя притянула лист бумаги, значит, на кухне всегда будет свежий воздух.
Большой популярностью пользуются островная вытяжка с вертикальным воздухопроводом. Модель крепится к потолку на удобном расстоянии от стены. Вес изделия не позволяет использовать натяжной или подвесной потолок. Корпус с двигателем подвешивается на тросики или на шпильки с цангами.


Наклонная
Наклонная вытяжка появились на рынке сравнительно недавно, но уже успела завоевать популярность. Такие модели отличаются необычным внешним видом. Форма помогает использовать даже ограниченное пространство кухни с большей пользой. Для экономии полезной площади вытяжка имеет высокий угол наклона.
Ограничения по высоте для для данного типа моделей не критичны. Чтобы точно отметить расстояние, к коробу монтируются специальные крепежи. Делаются замеры от верха короба до центра петель. вытяжка подвешивается с соблюдением стандартных правил крепления.


Не используются воздуховоды, диаметром меньше 120 мм. Один конец воздуховода скрепляется с переходным фланцем, другой конец необходимо соединить с вентиляционным отверстием в стене. Место стыковки укрепляется хомутом. Чем меньше изгибов, тем выше производительность, меньше шума и меньше вибрации.


Влияние характеристик вытяжки на высоту ее расположения
Оптимальное расстояние к каждому типу вытяжки производитель дает в инструкции. Поверхность изделия не является основным фактором. По стандартам определено минимальное расстояние от газовой плиты до корпуса, исходя из легко воспламеняющихся свойств жира от приготовления пищи, копоти и других веществ.
Но есть ряд основных параметров, которые необходимо учитывать при установке для наиболее эффективной эксплуатации оборудования:
- Мощность вытяжки;
- Размер оборудования;
- Площадь воздухообмена;
- Расположение воздухозаборника;


Вытяжка над газовой плитой устанавливается на высоте 0,75 метров, если оборудование небольшой мощности (требование ГОСТ). Современные модели способны очищать большие площади. В среднем норма составляет 500-600 кубометров в час. Крепить такие вытяжки можно выше к потолку, тем самым увеличивая рабочую зону.
Размер вытяжки должен соответствовать размеру газовой плиты. Если габариты окажутся меньше, пространство не будет очищено полностью от отработанного воздуха. Вытяжки средних размеров не подвешиваются слишком высоко. Чтобы иметь возможность увеличить расстояние между плитой и вытяжкой, приобретается модель размером от 0,9 метров.
Воздухозаборник встраивается в горизонтальном положении или под углом. В наклонном положении, нижняя граница вытяжки опускается ниже рекомендуемого параметра.
Расположение розетки
Размещение под потолком
Идеально, если розетка для вытяжки располагается под потолком. Наиболее удачный вариант — розетка находится рядом с вилкой в одном месте над вытяжкой. Такое расположение удобно и не портит кухонный интерьер. Не рекомендуется розетку устанавливать за воздуховодом.
Проводку лучше делать скрытую. Потребуется больше усилий, но работа выглядит на профессиональном уровне. Также розетку можно укрепить открытым способом, а проводку проложить в стене.


Размещение внутри кухонной мебели
Шкаф или кухонная полка может служить местом для розетки. Там же укрепляют вилку от вытяжки. В задней стенке делается специальное технологическое отверстие, подключается розетка. Отверстие закрывается декоративной крышкой.


В редких случаях розетка для вытяжки устанавливается посередине стены, в стандартном варианте. Это может быть не совсем удобно. Такое расположение предназначено, в основном, для холодильника, телевизора, электрочайника. С эстетической стороны, провод, который свешивается сверху, портит интерьер.


Розетки На Кухне intended for Розетки Для Кухни — Goosengz
Особенности установки вытяжного оборудования над газовой плитой
Вы купили кухонную вытяжку, принесли домой, повесили. Встает вопрос, как установить оборудование над газовой плитой и подключить к шахте воздуховода, чтобы не нарушилась естественная вентиляция на кухне. Простор для творчества большой. Как подключать — вариантов может быть масса. Чем подключать — в основном, используется пластиковый воздуховод или бытовая гофра.


ПВХ-воздуховод (пластиковый)
Выпускаются разных размеров 0,5 м, 1 м и 1,5 м круглой и прямоугольной формы. Если воздуховод нужен большего размера, продаются специальные соединители, которые скрепляют воздуховоды между собой. Все стыки промазываются силиконовым герметиком. Желательно после герметизации подождать 5-10 минут, пока не подсохнет состав. Возле основания стыки соединяются более прочно.
Вытяжка имеет стандартный круглый выход. Без необходимости не стоит специально делать меньше сечение воздуховода. К выходному фланцу подключается труба с одинаковым сечением. В крайнем случае, есть вариант воспользоваться переходником. Но при замене на меньший диаметр вытяжка может создавать шум в несколько раз больше обычного. Для уменьшения шума ставится угольный фильтр. Тяга будет несколько слабее, но, в любом случае, вытяжка будет забирать использованный воздух в нужном объеме.
Короба берутся подходящего размера. В основном, производятся с диаметром 120 мм. Углы, повороты и переходы в самих коробах бывают разные. Нужно учитывать, чем больше углов и стыков при установке – тем больше вытяжка теряет свою мощность. Маленькими саморезами крепится само основание.
Гофра бытовая (вентиляционная).


Чтобы подключить кухонную вытяжку к воздуховодам из алюминиевой гофры, понадобятся:
- Два хомута;
- Воздуховод из алюминиевой гофры;
- Вентиляционная решетка на вентиляционную шахту.
У вытяжки на выходе поставлен пластиковый фланец, обычно, с переходом с квадрата на круг, на который накидывается свободный конец гофры. В вентиляционную решетку вставляется специальный фланец, на которую накидывается оставшийся свободный конец. Устройство закрепляется хомутами. Гофра установлена. У гофры много достоинств, но есть большой недостаток – шумность.
Стандартные вентиляционные решетки для шахты
Выпускаются с двойным назначением, учитывая работу естественной вентиляции. Когда вставляется вентиляционное колено от вытяжки, она включается. Начинает работать принудительная вентиляция.
Инжектор помогает удалять отработанный воздух, направляя поток вверх. Оттуда его забирает естественная вентиляция. Если вытяжка выключена, тогда работает приточная вентиляция.


Вентиляционный кожух предназначен для того, чтобы скрыть подключение вытяжки. Он выполняет декоративную функцию, легко снимается. Под кожухом находится фланец. В декоративную пластину вставляется труба.
При подключении вытяжки, в конце воздуховода можно поставить антивозвратный клапан. Открывается, как «бабочка», препятствует обратному притоку воздуха.
Особенности установки в нестандартных ситуациях
Самый распространенный случай, если мешает газовая труба. С помощью дюбелей и длинных саморезных болтов можно присоединить брусок. На расстоянии газовой трубы крепится по уровню, чтобы вытяжка была установлена без перекосов. После чего оборудование крепится на брусок. Не должно быть никаких сдвигов.
На брусок не полностью накручиваются саморезы, потом подвешивается вытяжка и закрепляется до конца. Чтобы крепление получилось прочным, ниже по уровню крепится второй брусок. Таким образом, можно обойти газовую трубу и надежно закрепить вытяжку над газовой плитой.


Затевая ремонт на кухне, многие задаются вопросом. Какую технику выбрать, чтобы была качественной, а установка не сложной? Как не заблудиться в кухонных лабиринтах? Большим спросом пользуются вытяжки настенного типа. Помимо своей основной задачи, они украшают внешний вид помещения. Модельный ряд отличается широким ассортиментом материалов изготовления, форм, цветов и размеров. Установить вытяжку над газовой плитой не составляет большого труда.
Т С
на какой высоте и расстоянии
Вытяжка является неотъемлемым атрибутом любой, даже самой маленькой кухни. Без нее сложно говорить о комфорте – насыщенные ароматы 3-5 блюд одновременно смешаются в неприятное амбре и заполнят собой воздушное пространство. Как бороться с этим негативным явлением?
Устранить негативную смесь ароматов поможет вытяжное оборудование. Мы расскажем, как повесить вытяжку над газовой плитой и какие инструменты для этого понадобятся. С учетом наших советов вы сможете грамотно обустроить кухонное пространство.
Содержание статьи:
Важные правила установки вытяжки
Вытяжки необходимы на кухнях и с электрическими, и с газовыми плитами. Причем привила их установки во втором случае немного отличаются. Ведь при использовании газовой плиты приготовление пищи происходит под воздействием открытого огня. Эту особенность нужно обязательно учитывать перед монтажом.
В процессе приготовления пищи на газовой плите не только ароматы стряпни наполняют воздух – на кухне отчетливо ощущается запах сгорающего газа. Именно он вносит сумятицу в вопрос правильности выбора оптимального расстояния для будущей вытяжки.
Поэтому перед приобретением вытяжного оборудования для обустройства кухни следует , чтобы не пришлось менять технику практически сразу после установки.
Так, иногда можно услышать ошибочные рекомендации некоторых умельцев повесить этот прибор пониже на расстоянии 50-60 см от уровня плиты. По их словам, это позволит лучше и быстрее удалять угарный газ из комнаты.


Над газовой плитой обязательно устанавливают одну из наиболее подходящих моделей вытяжек, чтобы избавиться от копоти, гари и прочих примесей в воздухе
Такие советчики забывают, что открытый огонь с легкостью может переброситься на корпус вытяжного оборудования и тогда беды не миновать. Особенно опасной может стать ситуация, когда жировые фильтры уже успели загрязниться – они могут в считанные секунды воспламениться.
Чтобы такого не произошло, нужно помнить о том, над газовой плитой вешать вытяжку. Допустимый диапазон находится в пределах 75-85 см. Причем, как советуют опытные мастера, в некоторых случаях возможна погрешность в 5 см, если по-другому вытяжка не помещается.


Для газовой плиты расстояние до вытяжки должно быть больше, чем это предусмотрено для электрической. Но, ни в коем случае не меньше!
Кроме расстояния от плиты до вытяжки существуют и другие важные правила монтажа, среди которых:
- правильная установка оборудования;
- безопасное подключение к электрической сети;
- правильное подключение к системе вентиляции.
Чтобы вытяжное оборудование долгие годы исправно работало, помогая своевременно избавляться от симбиоза различных ароматов, его предстоит установить, четко придерживаясь основных правил монтажа. Его установкой можно заняться самостоятельно или пригласить мастера из фирмы с хорошей репутацией.
Еще одно важное правило, влияющее на качество монтажа и будущий микроклимат в помещении – соблюдение рекомендаций производителя оборудования. В первую очередь предстоит тщательно прочесть советы по высоте установки приобретенной модели вытяжки, приведенные компанией, ее изготовившей.
Затем нужно изучить рекомендации производителя газовой плиты в соответствующем разделе. В инструкции следует уделить особое внимание советам по высоте размещения вытяжного прибора.


Высота монтажа вытяжки во многом будет зависеть от типа оборудования и его мощности
Часто можно столкнуться с тем, что рекомендации к одному и второму прибору существенно отличаются. Производители вытяжек могут указывать высоту установки своего оборудования в 40-50 см от плиты. В таком случае нужно ориентироваться лишь на расстояние, указанное в инструкции к плите.
Если же сопровождающая документация к газовой плите потерялась, то вытяжку над ней можно повесить на расстоянии не ниже, чем 75 см.
Пошаговый монтаж вытяжки над газовой плитой
С работами по установке и подключению вытяжки вполне можно справиться своими силами. Для этого пригодится простой набор инструментов: дрель или шуруповерт, ножовка по металлу, отвертка, карандаш, уровень, рулетка. Также понадобится общее представление о монтаже вытяжного оборудования в бытовых условиях.
Подготовка к монтажным работам
К установке вытяжки приступают после того, как само оборудование уже приобретено. Первым делом необходимо прочесть инструкцию к вытяжке и к газовой плите, обратив особое внимание на высоту предстоящей установки.


Нельзя слишком высоко поднимать вытяжное оборудование, надеясь на его огромную мощность, оно не сможет своевременно удалять отработанный воздух из помещения
После изучения рекомендаций можно приступать к разметке места будущей дислокации вытяжного прибора над газовой плитой. Здесь все зависит от его типа, модели и принципа работы.
Бывают наклонные, угловые и островные вытяжки и . От того, какая именно модель будет стоять на конкретной кухне, и зависит место, где предстоит делать разметку. В любом случае желательно к ее монтажу приступать лишь после установки и подключения газовой плиты.
Галерея изображений
Фото из
Купольная вытяжка над газовой плитой
Наклонная модель вытяжки над плитой
Вытяжка островного типа
Воздуховод наклонной вытяжки уходит вверх
Размечать место для установки вытяжки нужно строго над газовой плитой, отмерив расстояние вверх в пределах 75-85 см. Затем предстоит распланировать расположение вентиляционной трубы, которая будет монтироваться к вытяжке. Для угольных моделей это неактуально.


Разметку и дальнейшую установку вытяжки над газовой плитой следует выполнять с использованием строительного уровня
Крепление вытяжки над газовой плитой
Когда с разметкой покончено, можно приступать к монтажу вытяжки. Здесь порядок проведения работ зависит от модели оборудования – для встраиваемой вытяжки предстоит немного поработать с навесным шкафчиком, в котором она будет прятаться.


Встраиваемая модель вытяжки будет прятаться в шкафу. Для этого внутри предстоит прорезать отверстие под гофру. Для угольной модели отверстие не понадобится
В секции навесного шкафа предстоит приподнять нижнюю полку на высоту, соответствующую высоте самой вытяжки. Это около 15-25 см. Затем прямо к этой полке предстоит саморезами прикрепить вытяжку, используя уже имеющиеся в корпусе отверстия.
Если отверстий нет, то можно их проделать самостоятельно, тщательно вымерив место будущего крепления. Если же модель купольного, углового или , то ее достаточно будет навесить на крепления, заранее установленные в стену или в потолок.
Галерея изображений
Фото из
Отметить места крепления вытяжки
Просверлить отверстия под крепления
Вбить молотком дюбеля
Вкрутить шурупы в отверстия
Оставить расстояние в 10 мм
Подвесить вытяжное оборудование
Закрепить хорошо саморезы
Проверить строительным уровнем
Важно при монтаже корпуса вытяжки не поднимать его за декоративные части, чтобы случайно не сломать. Если возникли сомнения в своих силах, то для установки дорогостоящей модели лучше сразу пригласить специалиста.
Подключение вытяжки к системе вентиляции
Если вытяжка уже заняла свое место над газовой плитой, можно приступить к следующему этапу – . Хотя в некоторых ситуациях без этого можно обойтись – все будет зависеть от принципа действия устанавливаемого оборудования.
По принципу действия выделяют следующие типы вытяжек:
- с отводом воздуха;
- очистка отработанного воздуха в режиме рециркуляции;
- 2 в 1 – возможна работа оборудования как в режиме отвода, так и в режиме рециркуляции воздуха.
В первом типе приборов установлен жировой фильтр, предназначенный для удаления частичек жира перед выводом отработанного воздуха за пределы помещения. Также здесь обязательно имеется воздуховод, по которому и перемещаются воздушные массы из комнаты.


При размещении мебели и техники на кухне стоит предусмотреть наименее короткий путь от вытяжки к вентиляционному отверстию – чем он длиннее, чем ниже эффективность прибора
Во втором типе вытяжек используются жировые и угольные фильтры – первые удаляют жир, а вторые фильтруют воздушные массы, избавляя их от копоти, гари, частичек воды и прочих примесей, дающих неприятный запах.
Третий тип оборудования также имеет 2 вида фильтров и оснащен воздуховодом, которого нет в угольных вытяжках. Такое строение обеспечивает функционирование в режиме удаления воздуха и в режиме его очистки без удаления.


Для угольных вытяжек не нужен воздуховод – эти приборы не эвакуируют воздушные массы из комнаты. Они их очищают и снова возвращают в помещение
Поэтому важно понимать, вытяжка с каким принципом действия сейчас будет устанавливаться. Ведь в монтаже воздуховода угольная модель не нуждается.
Для остальных типов вытяжек предстоит осуществить подключение к общедомовой системе вентиляции. Для этого понадобится гофра или пластиковый воздуховод, переходники, хомуты, герметик и металлизированный скотч.
Галерея изображений
Фото из
Подобрать комплектующие
Установить переходник нужного диаметра
Надеть на переходник один конец гофры
Присоединить гофру ко входу в вентшахту
После можно надеть декоративный кожух на воздуховод. Многие вытяжки купольного типа оснащены красивой накладкой, предназначенной для маскировки вентиляционной трубы, идущей в вентиляцию.
Подключение оборудования к электросети
Когда основные монтажные работы выполнены, осталось подключить вытяжку, расположенную над газовой плитой, к электросети. Вне зависимости от типа и принципа работы всем вытяжкам требуется электропитание. Без этого вытяжной вентилятор попросту не запустится.
Для подключения к сети может быть 2 варианта:
- включение в розетку;
- подсоединение напрямую.
Первый вариант самый простой и удобный. Если есть свободная розетка, а у вытяжки уже имеется провод с вилкой на конце – то его предстоит удобно спрятать в кабель-канал, протянув к розетке.


Розетка на кухне должна быть с заземлением. Об этом стоит помнить при подключении не только вытяжки, но и прочей кухонной электрической техники
Но действовать по первому варианту не всегда возможно – часто свободной розетки для вытяжки просто не хватает. У некоторых моделей слишком короткий провод с вилкой, который никак не дотянется до нужной розетки. Поэтому приходится подключать напрямую.
Здесь важно правильно подсоединить все провода вытяжки с питающим кабелем, чтобы земля соединялась с землей, фаза и ноль с соответствующими проводами. Электромонтаж следует выполнять строго при отключенном электропитании, а руки защитить специальными перчатками.
После такого соединения контакты нужно изолировать. Также обязательно следует проверить, не идет ли ток на корпус вытяжки.


Чтобы проверить правильность соединения проводов вытяжки с питающим кабелем напрямую, можно использовать инверторную отвертку. Если лампочка загорится, значит была допущена ошибка и прибор может ударить током
После завершения подключения осталось включить питание и проверить работоспособность вытяжного оборудования. Здесь все просто – достаточно включить любую скорость вытяжки и приложить лист бумаги.


Правильно установленная вытяжка над газовой плитой будет притягивать к себе лист бумаги, и он упадет на пол лишь после выключения прибора
Основные ошибки при монтаже вытяжки
Даже опытные домашние мастера, неоднократно выполняющие различные ремонтные работы в своей квартире/доме, могут допустить ошибки при . А новички в этом деле и подавно.


Для газовых плит рекомендуемая высота расположения вытяжек отличается от электрических. Об этом следует помнить перед началом монтажных работ
Самая распространенная ошибка – неправильно подобранная высота для монтажа прибора. Так, зачастую ответственный за установку считает излишним тратить свое время на прочтение инструкции и попросту полагается на мнение авторитетного в его глазах соседа/товарища, утверждающего, что достаточно 60-70 см.
Особенно часто такая ситуация может встретиться на кухнях, где никто не готовит. Ведь для того, чтобы сварить кофе и нагреть пиццу вытяжка не нужна. Поэтому вытяжка на этой кухне до поры до времени будет выполнять декоративную роль. Как только там появится хозяйка, вдохновенно ваяющая кулинарные изыски, предстоит покупка новой или переустановка низко висящей вытяжки.
Вторая ошибка при монтаже – недостаточная ширина оборудования. Следует помнить, что для нормальной работы ширина вытяжки должна быть такой же, как и у плиты.


Специалисты рекомендуют планировать покупку вытяжки лишь после приобретения газовой плиты. Так удастся подобрать оптимальную по ширине и высоте модель
Третья ошибка больше относится к дизайну – на функционирование оборудования она не повлияет. Речь идет о , соединяющими прибор с вентиляционной шахтой – на участках открытого пространства желательно монтировать пластиковый. Это позволит визуально придать более утонченный внешний вид коммуникациям.
Для воздуховодов, которые прячутся под декоративным кожухом, в гипсокартонном коробе или в подвесном потолке можно использовать гофру. Также такой вариант приемлем для моделей вытяжек, которые монтируются в навесной шкафчик. Воздуховод отлично спрячется в этом же шкафу – предстоит лишь прорезать соответствующее отверстие под него.
О том, как производится подробно написано в предложенной нами статье.


Воздуховод из металлизированной гофры отлично прячется в шкафу. Если вариант с маскировкой невозможен, лучше выбрать аккуратную пластиковую трубу
Еще одна ошибка допускается новичками при работе с вытяжкой с декоративным стеклом. При ее монтаже над газовой плитой предстоит быть крайне осторожным, чтобы случайно не повредить декоративный корпус. Ни в коем случае нельзя поднимать оборудование, держась за стекло.
Пятая ошибка – неправильное подключение к электросети. Такая ситуация чревата не самыми приятными последствиями, если ток пойдет по корпусу вытяжки. В основном эта проблема возникает при прямом присоединении проводов прибора с силовым кабелем домашним мастером-новичком.
Если же вытяжка будет включаться в розетку, то важно, чтобы электроточка была удалена от газовой плиты на расстояние 60 см. Соблюдение правил и норм техники безопасности убережет от случайного возгорания проводки.


Аккуратный белый пластик вентиляционного короба не бросается в глаза на кухне. При желании можно подобрать цвет в тон отделке стен или покрасить трубу в нужный оттенок
Всех ошибок можно избежать, если ответственно относиться к каждому этапу монтажных работ. Правильное выполнение установки и подключения вытяжки над газовой плитой с каждым шагом приближает к отличному результату. Качественно установленное оборудование порадует любую хозяйку и прослужит намного дольше своего эксплуатационного срока.
Выводы и полезное видео по теме
Чтобы встроить вытяжку с воздуховодом в мебельный шкафчик, нужно просверлить отверстие под вентканал. Подробнее о тонкостях этой работы в видео ролике:
Купольную вытяжку можно повесить на шурупы, вкрученные в стену. Об этом в следующем видео:
Видео ролик о том, на какой высоте следует монтировать вытяжку на кухне с газовой плитой:
Чтобы вытяжка на кухне была не только функциональной, но и выглядела эстетично, следует правильно ее установить и подключить. Основные секреты раскрыты в видео:
Подробный видео ролик о монтаже и подключении наклонной вытяжки:
Установка вытяжки над газовой плитой вполне может быть выполнена самостоятельно. Здесь важно выдержать минимально допустимую высоту от плиты, чтобы в дальнейшем не возникло проблем при ее эксплуатации. Собрать вытяжку и подключить ее удастся даже новичку.
Если же монтажные работы вызывают ужас, то не стоит экономить – проще пригласить мастера с хорошей репутацией и доверить ему установку.
Хотите рассказать о том, как устанавливали вытяжку на вашей кухне? Появились вопросы в процессе ознакомления с представленной информацией, есть полезные сведения по теме статьи? Комментируйте, пожалуйста, материал в расположенном ниже блоке, задавайте вопросы, оставляйте фото.
Вентиляционные каналы, которые расположены в здании, не всегда справляются с проблемой отработанного воздуха. Зачастую, они малоэффективны. Выходом из ситуации может стать наличие вытяжной системы.
Начиная монтаж, возникает вопрос, какое должно быть расстояние от плиты до вытяжки и какую нужно вешать вытяжку в своей кухне? Этот вопрос очень актуален. От того, на какой высоте устанавливать кухонную вытяжку, зависит качество ее работы и степень очистки воздуха.
Конструкция предназначена для вывода грязного воздуха, паров, копоти, запахов, остатков горения газа и других вредных компонентов наружу здания или очистки воздуха с последующим его возвращением внутрь кухни. Уровень очистки помещения от грязного воздуха зависит от того, на какой высоте вешать вытяжку и каким способом воздух будет очищаться.
В зависимости от того, куда уходит забранный воздух, определяется способ его очистки. Он может быть проточный или циркуляционный. На какую вытяжную систему обратить внимание, зависит от условий оборудования кухни и наличия в здании вентиляционных шахт.
Проточный способ очистки заключается во втягивании грязного воздуха и вывода его через систему вентиляции здания за его пределы. Положительной стороной такого способа является максимальная и быстрая очистка кухни от вредного воздуха. Для получения свежего воздуха достаточно открыть окно или форточку.
Циркуляционный способ основан на всасывании и перекачки грязного воздуха через систему угольных фильтров, с последующим его выводом внутрь кухни. Такой способ не требует оборудования вентиляционных каналов. Существенным недостатком является длительное время очистки воздуха и быстрое изнашивание фильтров.
Разновидности вытяжных устройств
В зависимости от места расположения плиты, выбирается конструкция кухонной вытяжки и способ ее установки. Вытяжные системы для кухни делятся на следующие виды:
- Подвесные. Имеют плоскую форму. Местом монтажа может служить дно навесного шкафа или полки.
- Встраиваемые. Этот вид монтируется вместо дна навесного шкафа. Часто сам шкаф служит корпусом, который скрывает вытяжную систему и ее коммуникации.
- Настенные. Монтаж проводится над плитой, как у подвесной вытяжной системы. Но крепление корпуса системы проводится на стену.
- Угловые. Монтаж таких устройств проводится над плитами, которые расположены в углу кухни. Они умеют угловую форму.
- Островные. Применяются в объемных кухонных помещениях. Крепятся на потолок в центре кухни.
На кухонных плитах хозяйки готовят до 90% всех блюд. Этот творчески-рутинный процесс сопровождается выделением пара, приятных (а порой и не очень) ароматов, мелких частиц жира и вредных продуктов, формирующихся в процессе горения. Всем этим насыщается окружающее пространство, и в первую очередь воздух в кухне. Без вентиляционного устройства здесь не обойтись, но каково должно быть расстояние от плиты до вытяжки, чтобы обеспечить чистоту в небольшом помещении?
Ответ на этот актуальный вопрос вы сможете найти в сегодняшней статье.
Оптимальные значения высоты для разных агрегатов
Высота установки вытяжки над плиткой определяется с учётом 2-х составляющих – типа варочной поверхности и конструктивных особенностей расположения оборудования для конкретной кухни. Необходимо понимать, что высоту никогда не «привязывают» к размерам воздухозаборника, комплектующим элементами или типу устройства.
Единственное исключение из правил – кухни с низкими потолками, где выдержать рекомендованное расстояние между варочной поверхностью и вытяжкой не представляется возможным.
Обратите внимание ! Специалисты рекомендуют корректировать высоту монтажа заборной конструкции в пределах 10 см от номинального расчётного значения.
Читайте так же:


Горизонтальные решения
Точно определить, на какой высоте устанавливать вытяжку, можно лишь при наличии данных о типе используемой кухонной плиты. Исходя из этого, и подбирается расстояние между притоком и вытяжкой. Указанный вид оборудования устанавливается с учётом целого ряда параметров (типа варочной поверхности, производительности заборного агрегата и т.п.).
Соотношение между ростом человека и высотой установки прибора
Но какое расстояние считается оптимальным по соотношению безопасности и эффективности?
Норма для каждого устройства своя, но существуют принятые стандарты, носящие преимущественно рекомендационный характер:
- расстояние между вытяжкой и конфорками газовой плиты – от 65 до 85 см;
- минимальное значение удаленности от варочной панели электрического типа – 60 см, а максимальное – 80 см.
Указанные данные справедливы лишь для аппаратов, фиксируемых строго по горизонтали.
Видео по установке агрегата горизонтального типа
Установка вытяжки своими руками. ЯСАММОГУ-ТВ


Наклонные агрегаты
Агрегат наклонного типа
При монтаже моделей наклонного типа, крайне важно, чтобы расстояние между плитой и вытяжкой соответствовало следующим значениям:
- от 35 до 45 см при работе с электрической плитой;
- от 55 до 65 см – для газовых конфорок.
В условиях реальной кухни вентиляционные аппараты принято устанавливать там, где эксплуатация будет не только эффективной, но и удобной для хозяйки. Указанные выше расстояния – экспериментально установленные значения, подтвержденные годами практики. Рассчитать их можно и самостоятельно, вот только придется учесть ряд переменных:
- площадь кухни;
- планировочные особенности помещения;
- ориентировочная площадь варочной поверхности;
- производительность и тип вытяжки;
- рост членов семьи, домохозяйки.
Обратите внимание ! Вытяжной агрегат достаточно просто крепится над электрической плитой, поэтому высота увеличивается без особых сложностей, в случае необходимости. А вот опускать оборудование ниже минимального уровня категорически запрещено.
Если не соблюдать установленную дистанцию и повесить агрегат слишком низко, существует высокая вероятность того, что устройство будет функционировать в условиях постоянного нагрева. А это чревато преждевременным выходом из строя верного помощника. К тому же, если вытяжка установлена слишком низко над электрической плитой, пользоваться ей будет просто неудобно.
Ви
Для многих людей кухня – едва ли не самое главное помещение в доме или квартире. Здесь не только готовят и едят, но и собираются всей семьей, ссорятся и мирятся, обсуждают новости, принимают важные решения. На Руси под кухню отводили не просто комнату в доме, а иногда даже специально обустроенное здание.
Современная кухня представляет собой гармоничное сочетание красоты, практичности и технологичности. Один из важных моментов в обустройстве кухни – отведение запахов, образующихся при приготовлении пищи. С этим справляются кухонные вытяжки. Мы расскажем, на какой высоте вешать вытяжку над газовой плитой, чтобы она качественно работала.
Высота вытяжки над газовой плитой: стандарты по ГОСТу


Правильно выбранная высота вытяжки над варочной панелью обеспечивает длительный срок службы прибора, эффективность его работы и безопасность при использовании.
Высота монтажа вентиляционного прибора зависит от таких факторов:
- разновидность плиты – газовая или электрическая;
- тип вытяжки;
- производительность устройства;
- расстояние от вытяжки до вентиляционной шахты.
Учитываются и такие моменты, как рост пользователя и интерьер кухонного помещения.
На основе расчетов и из соображений безопасности ГОСТом установлены параметры расстояния между вытяжным оборудованием и кухонной печью. Эти стандарты отображены в техническом паспорте каждого вытяжного устройства.
Расстояние минимальное и максимальное, в зависимости от типа плиты и вытяжки


Газовая плита – это открытый огонь и повышенная пожароопасность, поэтому требования к ее размещению более строгие. Стандарты по ГОСТу для высоты вытяжки над газовой плитой следующие:
- Прямые вентиляционные конструкции – купольные, встроенные, плоские, угловые. В них фильтры расположены параллельно поверхности печи. Должны крепиться на расстоянии 75-85 см от конфорок.
- Наклонные приборы, в которых фильтры расположены под углом по отношению к варочной поверхности. Высота расположения – 55-65 см.
Параметры размещения оборудования над электроплитой (индукционной, галогенной, простой с чугунными блинами-конфорками):
- Прямые. Минимальная высота над плитой – 65 см, максимальная – 75 см.
- Наклонные приборы монтируются на высоте 35-45 см.
Для комфортного процесса приготовления пищи допускается изменять высоту с поправкой на мощность модели, технические характеристики, дизайн кухни и рост пользователя.
Справка. Максимально разрешенное отклонение от стандартных норм в обе стороны – 5-10 см.
Как правильно измерить расстояние от плиты и столешницы со встроенной плитой до вытяжки


При замере расстояния от плиты до вытяжки учитывают тип техники. В зависимости от вида устройства замеры проводят следующим образом:
- Прямые вентиляционные устройства – купольные, встроенные, плоские, островные, угловые, т-образные. Замер производят от плиты до фильтров.
- Наклонные. Расстояние измеряют от поверхности кухонной печи до нижней точки вентиляционной техники.
Измерив высоту рулеткой, с помощью уровня переносят прямую на стену. Это и будет нижняя граница вытяжки, на которую ориентируются при ее установке.
Последствия неправильно выбранного расположения


Стандарт размещения определен не случайно. Любое самовольное изменение расстояния влечет неприятные и даже опасные последствия.
Если повесить вытяжку ниже установленной нормы, это чревато:
- перегревом устройства;
- воспламенением копоти, пыли, жира, оседающих на фильтрах вытяжки;
- сложностью очистки прибора;
- перекрытием обзора варочной панели.
Из-за низкого расположения пользователь будет часто задевать ее головой, ударяться. Процесс приготовления станет менее удобным, особенно для людей высокого роста.
Последствия слишком высокого расположения:
- снижение эффективности, так как высоко расположенный прибор хуже поглощает запахи и продуты сгорания;
- сложности в обслуживании устройства;
- из-за слабого поглощения неприятных запахов пользователь чаще включает прибор на максимальную мощность, что приводит к шумной работе устройства и повышенному расходу электроэнергии.
Заключение
Кухонная вытяжка поглощает неприятные запахи, испарения, продукты горения, образующиеся при приготовлении пищи. Есть стандартные правила монтажа оборудования.
По ГОСТу прямая вытяжная система над газовой печью должна находиться на высоте 75-85 см, а наклонная – 55-65 см. Над электроплитой установлено расстояние 65-75 см и 35-45 см соответственно. Допустимо изменять параметры не более чем на 10 см в пределах указанных. Соблюдение этих норм обеспечивает эффективность работы устройства и безопасность при эксплуатации.
Мы уверены, что если вам понадобится установить вытяжное устройство, то вы воспользуетесь помощью мастера. Между тем, чтобы подобрать расстояние от газовой плиты до вытяжки, придется забыть о спешке и учесть в среднем более пяти факторов, которые актуальны для вашей кухни.
Вам бы не хотелось повторной установки, не так ли? Монтаж вытяжки — очередное звено в обустройстве кухни, и выполненная работа по качеству не должна уступать всему остальному.
При установке вытяжки возникают ошибки, из-за которых прибор со временем становится непригодным. Потребители, у которых сломалось устройство, порой жалеют свои деньги на новую технику и начинают проветривать кухню в разы чаще и дольше. Для того чтобы с вашей вытяжкой такого не случилось, мы собрали всю важную информацию насчет высоты установки и правил монтажа прибора.
Содержание статьи:
Вытяжка над варочной поверхностью
Вытяжки над плитами улучшают местную вентиляцию, циркуляцию воздуха по всей комнате. Встроенные вентканалы с той же задачей справляются плохо, и перед владельцами кухни стоит выбор — использовать вытяжной прибор или постоянно открывать окна, как летом, так и зимой. Мебель и отделка сохранят вид, если пар от блюд будет выходить быстро.


На изображении — вытяжка классической купольной модели, но с более редкой для современности округлой формой и воздуховодом, уходящим в потолок
Вентиляционные устройства бывают 2 видов по способу действия и имеют больше 10 разновидностей по строению. Вытяжки ставят над газовыми плитами, электрическими, приборами смешанного типа.
Свойства воздуха становятся лучше благодаря тому, что вытяжка устраняет:
- пар;
- остатки горения газов;
- загрязненность;
- копоть;
- запахи.
Приборы очищают газообразную среду проточным (отводящим) и рециркуляционным способами. Устройства 1-го вида втягивают воздух и выводят его из здания. Среди недостатков стоит отметить, что системы нуждаются в каналах, и что кухню приходится наполнять воздухом с улицы.
Рециркуляционные вытяжки вбирают воздушную массу, перекачивают по фильтрам и отдают обратно. Очищают воздух долго, а их детали изнашиваются быстро, что и есть главным минусом.
Наименьшая высота установки вытяжки в случае с газовой плитой составляет 75—85 см между нижней кромкой и конфорками, кроме того, точные числа указывают в инструкциях к оборудованию. Приборы с меньшей силой тяги, около 300 м³/час, обычно размещают по нижней границе интервала, т.е. в 75 сантиметрах.
Такое же расположение подходит для систем, которые не имеют 10-сантиметрового запаса по ширине по каждой из боковин плиты. Вытяжки для электрической техники крепят в среднем на 10 см ниже — в 65—75 см над варочной панелью.


Идеальный зонт вытяжки выступает за плиту с боков и спереди, имеет большую глубину, ширину и площадь, чем варочная панель
В общих правилах есть исключение для наклонных систем. Над газовыми плитами их монтируют в 55—65 см по нижнему краю. На 20 см выше, чем над электрическими, с которыми хватает промежутка в 35—45 см.
Все виды вытяжных систем размещают по нижней кромке не выше чем в 90 см над варочной поверхностью любого прибора. Островную вытяжку на 1,3—1,5 метра в ширину, можно поднять еще на 5—10 см. Несоблюдение нижнего ограничения по установке увеличивает риск поломки деталей и возгорания жирной пленки.
На над газовой или любой другой плитой материал вытяжки не влияет. На размещение в пределах допустимого интервала — тоже.


Островные вытяжки устанавливают над кухонными островами и полуостровами: приборы изготавливают с прямоугольной, цилиндрической, квадратной, Т-образной формой, а также в виде перевернутых столов и необычных геометрических фигур
При выборе высоты учитывают три дополнительных фактора:
- Наличие организованной естественной вентиляции приточно-вытяжного типа и расстояние к ней. Чем меньше дистанция, тем выше можно монтировать устройство для плиты.
- Конфигурация кухни, мебели и бытовой техники. Речь идет о размещении второго яруса гарнитура, объектов над вытяжкой, высоте потолков, а также о наличии, размере и особенностях крышки плиты.
- Наличие печки. Прогретая духовка плохо влияет на внутренние детали вытяжного прибора. Над стандартным устройством с печкой вытяжку устанавливают ближе к верхней границе нормы, если этому ничто не мешает.
Сложности возникают из-за строения вытяжного прибора. Подвесные телескопические рассчитывают на установку ниже дна навесного ящика, что ограничивает выбор высоты. То же касается , которые «заменяют» дно мебельной секции, но шкафчики для крепления и скрытия воздухозаборника в случае чего меняют.
Установке настенных вытяжек на оптимальной высоте иногда мешают трубы и крышки плит. Островные модели крепят к потолку, поэтому их высоту по нижнему уровню определяют габариты.


Для всех, кто занимается готовкой, следует организовать доступ до дальней части вытяжного прибора; к его регулировочной панели, которая обычно находится спереди, дотянется любой взрослый даже при максимальной высоте размещения
В промежутке между варочной панелью и низом вытяжки нельзя использовать розетки. Точку для электропитания предусматривают на уровне 2—2,5 метров над полом, внутри навесных шкафчиков или сразу над ними.
Розетку отдаляют минимум на 15 см от воздуховода. Наиболее универсальной высотой для гнезда считают уровень в 200 см над полом и 110 см выше плиты или столешницы рабочей зоны.
Расчет мощности вытяжного прибора
По СНиП 2.08.01-89 норма удаления обработанного воздуха для 4-конфорочных плит составляет 90 и более кубометров в час. ГОСТ 26813-99 требует от вентиляционных установок мощности от 200 м³/час.
А вот устанавливать механическую (принудительную) вентиляцию на кухне обязывает СНиП 2.04.05-91.
Перед выбором высоты и установкой следует определить нужную производительность. Монтаж слабой системы в большой кухне — пустая трата денег.
Минимальную мощность для эффективной очистки воздуха определяют формулой N=S×h×12×1,3, где:
- S — площадь кухни;
- h — высота потолков в комнате;
- 12 — столько раз нужно обновлять воздух в кухне в течение часа;
- 1,3 — эквивалент 30% — примерного показателя потери мощности из-за движения воздуха по изгибам, соединениям, отверстиям и фильтрам.
К полученному результату добавляют небольшой запас и без указанных 30 процентов, ведь изготовителями бывает неточным.
Владельцам средних кухонь стоит ориентироваться на модели мощностью 350, 400, 450 и 500 м³/час. Показатель подбирают не больше пропускной способности используемых встроенных вентканалов.


В таблице показана минимально необходимая мощность вытяжки в м³/час (с округлением к целым числам) по уже описанной формуле N = S × h × 12 × 1,3 — с показателями площади кухни, высоты потолка и других множителей — расчеты подходят для кухонь с дверью
Множитель «12» можно увеличивать до 20, если плита газовая и с повышенной мощностью. Наращивают его и для электрических приборов, тоже по критерию производительности (до 15). Минимальное значение коэффициента составляет 10.
Путь воздушного рукава прокладывают так, чтобы не загораживать решетку встроенной вентиляции. Избегают сложной геометрии и большой удаленности участков воздуховода.
В квартирах коммуникацию к отверстию на улицу нельзя прокладывать без разрешения. Более подробно о тонкостях выбора вытяжек можно прочесть в .
Установка вытяжной системы над газовой плитой
Сперва на бумаге отмечают коммуникации и расстановку мебели — планируемые или готовые данные. Для абсолютной точности рисуют линии на стенах.
Обязательно учитывают электробезопасность. Без заземления не обойтись, и, если соответствующей розетки в кухне нет, то в электрощитке ставят (УЗО) на 16 ампер.
К силовой сети прибор подключают тремя проводами: фаза, ноль и земля. В щитке находят глухую нейтраль с гайками и проводами. От нее проводят собственный провод сечением от 2,5 мм². Жилу накидывают отдельно или поверх других, если есть техническая возможность.
Самостоятельно отсоединять уже закрепленный провод нельзя – может ударить током. Вытяжную систему подключают через автомат на 6,3 ампера.


Провода заземления имеют желто-зеленый окрас, это так называемый защитный ноль, а рабочий ноль обозначают проводами синего цвета
В новых квартирах есть розетки евро-типа и контур заземления. Устройство подключают к клемме с надписью GND (Ground) или с тремя линиями разного размера. На вытяжных приборах без гнезда для заземления провод крепят к металлической части.
Безопасными моделями считают вытяжки с автоотключением, которые прекращают работу после короткого замыкания или возгорания.
После начальных мероприятий переходят к разметке места под вытяжное устройство, подсчету крепежных частей. В последний раз замеряют расстояние от вытяжки до плиты и сравнивают его с нормой высоты над газовыми приборами.
Воздуховод для вытяжки делают максимально прямым и коротким, но без нарушения относительной прямоты в соединениях и без углов, существенно отличающихся от прямого. Переходные детали между участками используют со слегка закругленной формой. В идеале повороты состоят из множества коротких деталей.
Площадь сечения прохода изменяют, только если других вариантов нет. Всего делают не больше трех изгибов. С забитой вентиляционной шахтой вытяжка будет работать плохо, и тогда используют циркуляционные системы и обходятся без воздуховода.
Монтаж вытяжки между шкафчиками
Сначала собирают вентиляционный рукав. Воздуховоды бывают квадратного и круглого сечения, а типовой размер составляет 13×13 см. Диаметр подбирают под проделанное отверстие в вентиляционной решетке или стене, выдерживают неизменным по всей длине.
Предпочтение отдают воздуховодам, изготовленным на основе пластмасс или металлов, с гладкой внутренностью и .


Вентиляционный рукав, собранный из коротких фрагментов и длинной трубы: таким образом создают жесткие конструкции с плавными прямолинейными переходами
Этапы установки вытяжного прибора:
- Сверлим отверстия под метизы или шурупы для закрепления вытяжки.
- Вкручиваем крепежные изделия.
- Проверяем горизонтальность между шурупами строительным уровнем.
- Закручиваем крепления до рабочего положения.
- Навешиваем вытяжку на шурупы. Убеждаемся, что крепления выдерживают нагрузку. Закручиваем шурупы более туго, если есть потребность.
- Соединяем вытяжной прибор с , который уже прикреплен к вентиляции или другому выводу.
- Включаем устройство в розетку. Проверяем, как оно работает в разных режимах мощности.
Приборы с декоративным коробом устанавливают без обрамления. После успешного пуска вытяжки украшающую деталь ставят на место.
Подробную инструкцию по подключению вытяжки к вентиляции можно прочесть в .
Другие варианты монтажа
Вытяжки крепят не только между шкафчиками, но также внутри. В комплектах мебели иногда делают модули под вытяжной прибор.
Установка в неприспособленную секцию включает три этапа: подготовку навесного шкафчика, его закрепление и подводку коммуникаций, монтаж рабочего устройства.


Специальная секция для встраиваемой вытяжки: агрегат можно скрывать на время простоя, однако в таких шкафчиках почти никогда нет места для хранения
Подготовка навесного ящика:
- Откручиваем дверцы.
- Снимаем модуль с петель на стене. Второй человек должен поддерживать шкафчик, чтобы он не упал. Еще можно сделать временное крепление со смежными стенками других ящиков.
- Демонтируем нижнюю полку корпуса. Убеждаемся в совместимости техники и шкафчика. Боковины при необходимости подрезаем.
- Определяем, какой будет глубина размещения воздуховода в шкафчике. Потом из верхней и внутренних полок вырезаем части по очертаниям воздушного канала и глубине расположения. Предусматриваем также место для шнура электропитания.
- Во внутренней полке делаем четыре отверстия для фиксации вытяжки — если конфигурация прибора предусматривает такое крепление. В других случаях монтируем рейки.
Шкафчик устанавливают обратно и организовывают подключение к электросети. Вытяжку встраивают в отведенное пространство и крепят саморезами. Потом соединяют с воздуховодом, а полки при потребности временно устраняют.
В конце возвращают на место дверцу, но, по возможности, переделывают на подъемную. При желании добавляют газлифты.


Пример расчета габаритов (мм) для установки вытяжного прибора в нижнюю часть шкафчика с креплением четырьмя саморезами к внутренней полочке
Тесную кухню есть смысл оборудовать вытяжкой без оболочки вроде декора или шкафа для встраивания, которые постепенно теряют привлекательный вид. Роль опорной конструкции можно отвести самодельному каркасу из металлических уголков.
Детали собирают в прямоугольную конструкцию и потом все окончательно замеряют и определяют место для несущих саморезов-шпилек, на которых будет держаться каркас. Еще перед установкой до рамы подводят заземляющий провод. В конце остается закрепить вытяжку в каркасе, повесить аппарат, соединить его с готовым воздуховодом и запустить для проверки.
Выводы и полезное видео по теме
Высота монтажа над плитой, особенности установки и некоторые интересные моменты:
Обзор нюансов строения и подключения вытяжек, разные ошибки:
Очистка жирового фильтра вытяжки для того, чтобы увеличить мощность прибора и продлить срок его службы — способы:
В статье мы привели исчерпывающую информацию о нюансах, которые придется учесть до размещения вытяжного прибора. Мы указали стандарты по высоте вытяжки над газовой плитой, сравнили их с нормами для электрических. Нижний уровень монтажа начинается от 75 см над газовыми конфорками.
Наклонные приборы можно вешать в 55 см. Высоту определяют также по указаниям производителя, размерам вытяжки, ее мощности, рисунку кухни и мебели. Устройства для работы над кухонными плитами бывают проточными и циркуляционными. Приборы 2-го типа воздух очищают и возвращают.
Пишите комментарии и задавайте вопросы по теме статьи. Расскажите, с какими трудностями пришлось столкнуться при установке вентиляционного прибора над плитой. Форма для связи расположена под статьей.
Восхождение, Туризм и Альпинизм: SummitPost
Обзор
Вид на гору Худ из КенвудаВинная страна Калифорнии известна своими производительными виноградниками, красными лесами и впечатляющей береговой линией округа Сонома, а не пиками с потрясающими видами и бурными скалистыми лицами. Гора Худ предлагает исключение из этого правила, оно может похвастаться не только впечатляющим видом на большую часть района залива и драматическим каменным лицом, но и необычным карликовым лесом, привлекательными прудами и лугами на пути к вершине, историческими усадьбами, красивыми ручьями и полевыми цветами (в сезон) и возможность рюкзака в дикой местности в нескольких милях от городской зоны Санта-Роза.Сумма этих атрибутов делает Гору Гуд одним из лучших пиков Винной Страны и большей Северной Бухты.
Гора Худ — один из самых южных пиков в горах Майякамас. Майякамы — это субдиапазон хребта Северного побережья, простирающийся на юг от русской реки, вытекающей из Поттерской долины к болотам вдоль залива Сан-Пабло, общая протяженность которых превышает 80 миль. Несмотря на то, что дальность полета невелика, самые высокие вершины — гора Кобб и гора Святой Елены, достигающие 4000 футов.Северная половина ареала образует водораздел между водами, которые текут прямо в Тихий океан, и водами, которые являются частью водораздела реки Сакраменто, который впадает в залив Сан-Франциско. Южная часть Майякам образует водораздел между рекой Напа и ручьем Сонома. Хотя он примыкает к горам Майякамас у горы Святой Елены, горы, образующие восточную стену долины Напа, похоже, не считаются частью ареала. Особенно интересным аспектом майякам является то, что они содержат гейзеры, крупнейшую в мире область геотермальной добычи.На своем пике он произвел 2000 мегаватт, что достаточно для питания 2 000 000 домов.
Горы Майякам имеют удивительное количество общественных земель, как в северной, так и в южной частях. На юге общественные земли сосредоточены в комплексе парков, состоящих из государственного парка Sugarloaf Ridge и регионального парка Hood Mountain. Региональный парк принадлежит и управляется округом Сонома. Два смежных парка содержат объединенную площадь 5770 акров с большим количеством дополнений в работах.Несмотря на то, что они управляются отдельно, между двумя парками существует тесное сотрудничество, и маршруты регулярно пересекают границы. Один из трех маршрутов к вершине горы Худ начинается в Сахарная голова.
Как отмечалось ранее, южные Маякамы образуют водораздел между рекой Напа и ручьем Сонома. Гора Худ — самая высокая точка на пропасти. Соседняя Лысая гора в Государственном парке Шугарлоф-Ридж всего на один фут короче. Разница между двумя пиками не может быть более драматичной.Лысая гора — это травянистая ручка к западу от главного гребня майякам. В отличие от этого, гора Гуд находится к западу от гребня, что придает ему гораздо более заметный вид. Это дополняется тем фактом, что гора возвышается на 2000 футов над Долиной Луны, с которой видна вершина скалистого западного лица. Западное лицо является наиболее отличительной чертой горы Гуд. Сложенные из вулканических пород, похожих на те, что встречаются в районе острова Святой Елены / Палисад, скалистые утесы поднимаются почти на 700 футов, что является исключительным количеством для этой части Калифорнии.Утесы увенчаны Gunsight Rock, обнаженной парой скал, с которых возможны захватывающие виды на район залива. Хотя и не так высоко, как истинная вершина горы, любое путешествие на гору Худ является неполным без посещения Ганзейт-Рок, поскольку с этой точки зрения вид намного лучше.
Кроме открытого камня вокруг Скалы Ганзайт, остальная часть Горы Гуд покрыта густым лесом. Основную часть леса составляют типичные лесные массивы калифорнийского дуба, которые включают в себя бухту, мадрон, пихту Дугласа и другие в дополнение к дубу.На северо-восточной стороне горы находится большой карликовый лес, состоящий из низкорослых сосновых кобконе и кипариса Сержанта. Деревья в карликовом лесу редко превышают 15 футов в высоту, что является следствием нежелательной почвы, на которой дерево должно расти.
Гора Гуд также имеет два небольших пруда недалеко от вершины. Мергансерский пруд — это окутанная водой скалистая вершина, возвышающаяся над его западным берегом. Одно из двух мест для кемпинга в бэккантри, которое находится на горе Худ, находится в 100 ярдах к востоку от пруда.Чуть выше Мергансерского пруда находится Голубой цапля. В то время как первый искусственный, последний, кажется, подпружиненный пруд. Прямо над двумя прудами находится большой луг и фруктовый сад, а также остатки старой усадьбы.
Лучшие виды на гору Худ — на самом деле из Скалы Ганзайт. Оттуда Долина Луны распространяется на север и юг. Горы Сонома, включая пик Беннет, гору Тейлор и гору Сонома, находятся на противоположной стороне долины. Санта-Роза и Прибрежный хребет находятся на западном горизонте и на севере видны пик Гейзер, остров Святой Елены и большая часть остальных гор Майякамас.Вид на юг включает гору Тамалпаис, гору Диабло, гору Сульфур-Спрингс (у Вальехо) и дальний пик Миссии (около Сан-Хосе). Можно наблюдать залив Сан-Пабло, Окленд, Сан-Франциско, а также мост через залив и мост Сан-Рафаэль.
Примечание о названии вершины
Существует несоответствие относительно названия вершины. На всех картах USGS эта вершина обозначена как Гора Худ. В местном масштабе гора идентифицирована как Гора Гуда. Об этом свидетельствует название парка, в котором находится гора, и таблички на вершине.Хотя оба они кажутся вполне приемлемыми, местное название здесь используется на Summitpost, чтобы избежать путаницы с гораздо более знаменитой Маунт-Худ в Орегоне. Гора Худ была названа в честь местного пионера, который жил на горе.
Карта Горы Гуд
Горная область ГудМаршруты
Хребты, по которым проходит тропа Гудспид-НатткемперТри тропы ведут к вершине горы Худ. Две тропы подходят с юга. Первая — это тропа Джонсон Ридж, которая ведет к каньону Худ-Маунтин-Крик.Второй маршрут, тропа Гудспид-Натткемпер, начинается в государственном парке Шугарлоф-Ридж и поднимается на южную сторону горы. Третий маршрут, саммит тропа начинается на северной стороне горы Худ. Все три маршрута набирают высоту около 2000 футов.
Карта Горных Троп Гуда
Как добраться
В Долине Луны начинаются два маршрута к Горной ГореПроезд к трем тропам:
Саммит Трейл:
От Санта-Роза, на восток по шоссе 12.Поверните налево на Los Alamos Road и следуйте по нему более 5 миль до его конца на отмеченной тропе.
Джонсон-Ридж Трейл:
От Санта-Роза направиться на восток по шоссе 12. Поверните налево по Пифийской дороге и следуйте по ней более 1 мили до конца на отмеченной тропе.
Тропа Гудспида-Натткемпера:
От Санта-Розы до шоссе 12 на восток. Поверните налево на Adobe Canyon Road. Ищите тропу слева сразу после пересечения границы Государственного парка Шугарлоф-Ридж.
Красная лента
Голубой пруд с цаплей, на северной стороне горы ГудНа двух тропах регионального парка Худ-Маунтин (Саммит-Трейл и Джонсон-Ридж-Трейл) взимается плата в размере 6 долларов США. Тропа Гудспид-Натткемпер-Трейл расположена до пункта оплаты в государственном парке Шугарлоф-Ридж.
Тропы в Региональном парке Гора Худ закрыты после захода солнца.
Хотя на некоторых из маршрутов, ведущих к вершине горы Худ, есть несколько служебных дорог, он управляется как парк дикой природы.Нормальные правила дикой природы и этики применяются. Есть частная собственность, особенно в начале тропы Джонсона. Пожалуйста, будьте уважительны при прохождении дома.
Кемпинг
Бэккантри кемпинг рядом с прудом МергансерНа горе Худ есть два бэккантри-лагеря. Один на Саммит Трейл, другой на Суде над Джонсоном. Ближайший кемпинг находится в государственном парке Sugarloaf Ridge, который находится к югу от горы Худ. В близлежащем региональном парке Спринг-Лейк в Санта-Розе есть также кемпинг.
Внешние ссылки
Региональный парк Гора ГудМаршрутная карта района Гора Гуд.
Вид Галерея изображений Гора Худ — 25 изображений
,Гора Худ | гора, штат Орегон, США
Гора Худ , самая высокая вершина (11 239 футов [3425 метров]) в Орегоне, США, и четвертая по высоте вершина в Каскадном хребте, 45 миль (70 км) к востоку-юго-востоку от Портленда. Это спящий вулкан, который в последний раз извергался около 1865 года, с незначительными выбросами пара и пепла (тефры) в 1903 году; там регулярно происходят селевые потоки, ледниковые наводнения и землетрясения. Впервые увиденный в 1792 году английским мореплавателем Уильямом Бротоном и названный в честь британского адмирала лорда Худа, заснеженный пик использовался в качестве ориентира ранними поселенцами.Двенадцать ледников и снежные поля покрывают приблизительно 80 процентов конуса горы Худ с высоты 6 890 футов (2100 метров).
- Гора Худ отражается в озере Триллиум, штат Орегон. © Index Open
- Гора Худ, с Затерянным озером на переднем плане, Орегон. Scenics of America / PhotoLink / Getty Images
- Гора Худ, вид с озера Триллиум, Орегон. Боб и Ира Спринг / Encyclopædia Britannica, Inc.
Британика Викторина
Все о горах Викторина
Какая самая высокая гора на Британских островах?
Маунт-Худ — центр национального леса Маунт-Худ, популярной туристической и рекреационной зоны, которая простирается вдоль Каскадного хребта от реки Колумбия.
Маунт-Худ (эссе)
Гора Худ — это стратовулкан на северо-западе штата Орегон, расположенный примерно в пятидесяти милях к востоку от Портленда и в тридцати пяти милях к югу от реки Колумбия. На высоте 11 244 футов это самая высокая точка в штате Орегон и четвертая по высоте вершина в Каскадном хребте. Гора Худ играет центральную роль в геологии, истории, природной среде и культуре, которые помогли сформировать северо-запад Орегона и весь тихоокеанский северо-запад.
Извержения и ледники
Гора Худ, состоящая в основном из андезита и дацита, начала образовываться во время извержений вулканов между 500 000 и 700 000 лет назад.В течение последующего тысячелетия продолжались извержения и формирование горы. На своей самой высокой высоте гора Худ достигла высоты 12 000 футов, а лед и эрозия уменьшили пик до его нынешней высоты. Известные природные особенности включают Купер Спур, Иллюминатор Рок, Барретт Спур, Миссисипи Хед, мыс Макнил, хребет Йокум и Кафедральный хребет.
Извержения на горе Худ были охарактеризованы не столько мощными взрывами, сколько постепенным строительством и обрушением лавовых куполов, пирокластическими потоками и вулканическими селевыми потоками, известными как лахары.За последние 2000 лет Маунт-Худ пережил три изверженных периода: период Timberline, чуть более 1500 лет назад; период зигзага около 600 лет назад; и период Старой девы, между 1760-ми и началом 1800-х годов. Последнее крупное извержение, которое, по оценкам, произошло в 1780-х годах, отправило массивного лагара вниз по реке Сэнди и оставило позади Кратер-Рок, купол лавы высотой 550 футов на южной стороне горы. Хотя с тех пор гора не извергалась, вентиляционные отверстия в ее верховьях, называемые фумаролами, все еще испускают сернистый пар, и незначительные землетрясения часто происходят глубоко под горой.
Маунт-Худ является местом обитания одиннадцати названных и активных ледников: Зигзаг, Рейд, Сэнди, Глисан, Лэдд, Коу, Лангилл, Элиот, Ньютон Кларк, Уайт-Ривер и Коулман. Двенадцатый ледник, который в 1924 году окрестили ледником Лосось, а затем переименовали в ледник Палмер, потерял достаточно объема и подвижности в двадцатом веке, чтобы его можно было считать снежным полем. Гора также является источником пяти основных рек — Лосося, Зигзага, Сэнди, Худ и Уайта — и является центральным элементом Национального леса Маунт-Худ, миллионного акра леса, который ежегодно посещают более четырех миллионов человек.
Ледники не являются источником питьевой воды для города Портленда, который получает воду из водораздела Булл Ран, охраняемого водораздела площадью 102 квадратных мили в Национальном лесу Маунт-Худ, расположенного к северо-западу от собственно горы Худ. Бег Булл отделен от горы заметным хребтом и питается в основном ливнями, которые колеблются от 130 дюймов в год на более низких высотах до 170 дюймов выше. Талая вода ледников Элиот, Коу и Ньютон-Кларк питает три потока, которые в конечном итоге образуют реку Худ, которую фермеры и садоводы используют для полива сельскохозяйственных культур и фруктовых деревьев в долине реки Худ.Национальный лес Маунт-Худ содержит не менее пятнадцати муниципальных водосборов.
/ медиа-коллекции / 85/
Естественная история
Гора и ее окрестности являются домом для разнообразия диких животных, в том числе чернохвостых оленей ( Odocoileus hemionus ), лося ( Cervus elaphus ), койотов ( Canis latrans ), желтопузых сурков ( Marmota flaviventris) ), черные медведи ( Ursus americanus ), горные львы ( Puma concolor ) и многие другие виды, распространенные на северо-западе.Белоголовые орланы ( Halioaeetus leucocephalus ), скопы ( Pandion haliaetus ), северные пятнистые совы ( Strix occidentalis caurina ), американские ковши ( Cinclus mexicanus ), серые сойки ( Perisoreus Canadensis , ) Picoides pubescens ) и рыжие колибри ( Selasphorus rufus ) также живут на горе и вокруг нее.
Ботанические виды включают в себя папоротники (например, Blechnum spicant и Polystichum munitum ), вечнозеленую чернику ( Vaccinium ovatum ), медвежью траву (Xerophyllum tenax), лососину (Rubus spectabilis), лишайник бороды ( Usnea longima, longis withais longima, longima wisimais longima, longima witisissis) лишайник ( Alectoria Ach.), западный триллиум ( Trillium ovatum ), наперстянка ( Digitalis purpurea ), пурпурный люпин ( Lupinus sulphureus ssp. kincaidii ) и индийская кисть ( Castilleja miniata ). Виды деревьев включают пихту Дугласа ( Pseudotsuga menziesii ), западный красный кедр ( Thuja plicata ), благородную пихту ( Abies procra ), сосну пондерозу ( Pinus ponderosa ) на восточной стороне горы, западный болиголов ( Cicuta Douglasii ), клен крупнолистный ( Acer macrophyllum ), клен виноградной лозы ( Acer circinatum ), черная хлопковая древесина ( Populus trichcarpa ) и редкая сосна ( Pinus albicaulis ).
/ медиа-коллекции / 86/
История человечества
В течение тысяч лет коренные жители жили в тени горы Худ, в основном вдоль реки Колумбия и ее притоков, а также в долине Уилламетт. Племена и группы среднего и верхнего чинуканов, в том числе каскады и народ молала, жили в Каскадном хребте и имели систему следов север-юг, которая приближается к современной тихоокеанской тропе Crest. Они охотились и ловили рыбу вокруг горы Худ; собирали чернику, корни и съедобные растения; и собранные растения, такие как медвежья трава, для использования в плетении корзин.
Местные жители считали гору священным местом. В одном мифе из племени кликитат у Великого Духа есть два сына, Вайаст и Пахто, которые вступают в разрушительную битву, чтобы завоевать чувства прекрасной женщины по имени Ловит. Разъяренный на своих сыновей, Великий Дух превращает всех троих в горы: Пахто — гора Адамс, Луовит — гора Св. Елены, а Восточный — гора Худ.
Гора и земли, окружающие ее, были переданы Соединенным Штатам в соответствии с Калапуйским договором 1855 года и Договором с племенами Среднего Орегона, который был ратифицирован в 1859 году.Резиденция Конфедеративных племен Уорм-Спрингс, в которой проживает около 4000 членов племен Уорм-Спрингс, Васко и Пайуте, расположена к югу от горы Худ.
Первое зарегистрированное наблюдение горы европейцами было в 1792 году. Во время руководства небольшой экспедицией двух баркас по реке Колумбия в октябре 1792 года лейтенант Уильям Бротон, британский морской офицер, описал гору и назвал ее в честь лорда. Сэмюэл Худ, британский адмирал, который никогда не видел горы.Экспедиция Льюиса и Кларка также увидела гору в 1805-1806 годах.
Гора Худ была важной вехой для первых поселенцев, которые приехали в Орегон на Орегонской тропе. В конце лета 1845 года Сэмюэл Барлоу отправился на поезде из Даллеса в поисках сухопутного маршрута вокруг горы Худ. При поддержке Джоэла Палмера группа проложила тропу вокруг юго-восточной стороны горы. В следующем году Барлоу разработал маршрут, известный как Барлоу-роуд, по которому многие поселенцы пробирались в долину Уилламетт.В течение десятилетий на горе были созданы небольшие общины, в том числе зигзаг, рододендрон, правительственный лагерь и паркдейл.
Первое официально зарегистрированное восхождение на вершину горы Худ было сделано Генри Питоком и его командой в 1857 году (команда, возглавляемая Томасом Дриером, утверждала, что достигла вершины тремя годами ранее). Питток был редактором газеты и издателем Portland Oregonian .
В 1894 году на вершине горы Худ был основан портовый клуб альпинистов «Мазамас».В течение двадцатого века гора стала главной достопримечательностью для альпинистов. На вершине в 1915 году была построена пожарная смотровая кабина, и каждый год рейнджеры устанавливали фиксированные линии на верхних участках основных маршрутов для помощи альпинистам. По оценкам Лесной службы, от 8000 до 10000 человек пытаются подняться на гору Худ каждый год. Большинство людей следуют по маршруту южной стороны, хотя есть еще много маршрутов, включая продвинутые маршруты, такие как хребет Йокум, шпор Купер и центральная капля на северо-восточной стороне, известной как черный паук.
Более 130 человек погибли на горе Худ во время лазания, катания на лыжах или участия в других мероприятиях. В 1986 году семь старшеклассников и два сотрудника Орегонской епископальной школы в Портленде погибли, оказавшись в ловушке на горе в результате сильного шторма. Они пытались подняться на гору в рамках школьной образовательной программы в Бейскемпе. Ухудшение погоды заставило группу из десяти студентов и трех взрослых укрыться в снежной пещере.После первой ночи один взрослый и один студент покинули пещеру, чтобы попытаться найти помощь. Пара достигла горы. Горнолыжный курорт Худ-Мидоуз на следующее утро, но искатели не нашли пещеру только через три дня. Только двое из учеников выжили. В 2002 году девять альпинистов упали в трещину на южной стороне маршрута. Трое из них умерли. При попытке эвакуировать пострадавшего альпиниста вертолет ВВС Pave Hawk врезался в гору. В 2006 году трое альпинистов, пытавшихся совершить зимнее восхождение по маршруту Купер Спур, столкнулись с проблемой, вызвав многодневный поиск, который привлек внимание национальных СМИ.Искатели обнаружили тело одного из альпинистов в снежной пещере на северной стороне горы; два других так и не были найдены.
В дополнение к тому, что Маунт Худ является популярным местом для скалолазания, здесь есть пять горнолыжных и сноубордических курортов: Горнолыжная зона Саммит, Тимберлайн, Mt. Горнолыжный курорт Hood Meadows, Горнолыжный курорт Cooper Spur и Mt. Капюшон Скибоул. Снег на горе Худ — в среднем от 300 до 500 дюймов в год — более влажный и тяжелый, чем в других известных лыжных районах на западе, но высокая высота, особенно в Тимберлайне, дает горе Худ, что, вероятно, самый длинный лыжный сезон в Северная Америка.Лыжные олимпийские и лыжные команды со всего мира тренируются в лыжной области Timberline в течение лета, а с 80-х годов на южной стороне горы развивается сцена летнего лагеря для лыжников и сноубордов.
Горнолыжная зона в Тимберлине сосредоточена в Timberline Lodge, национальной исторической достопримечательности, построенной в рамках проекта Администрации по выполнению работ в период с 1936 по 1937 год. Ложа, расположенная чуть ниже 6000 футов на южной стороне горы, является ярким примером деревенского стиля. архитектуры, известной как Cascadian.Timberline Lodge боролся в первые годы и закрылся во время Второй мировой войны и снова в 1954 году из-за финансовых и управленческих проблем. Он открылся в 1955 году под управлением Ричарда Конштамма, который смог перевернуть бизнес. Примерно два миллиона человек посещают Timberline Lodge каждый год. К другим историческим сооружениям на горе Худ относятся Хижина Силкокс, Cloud Cap Inn и несколько каменных укрытий, построенных Гражданским корпусом охраны природы в 1930-х годах. Каменные укрытия расположены вдоль тропы Тимберлайн, походной тропы в сорок одну милю, которая окружает гору.
/ Медиа-коллекции / 87/
Современные проблемы, стоящие перед Маунт-Худом и окружающей его средой, включают новые жилые и курортные застройки, пробки на дорогах, увеличение использования зон отдыха и растущий спрос на природные ресурсы, такие как вода и древесина. Гора находится внутри и частично окружена заповедной территорией. В 2009 году Конгресс принял Акт об управлении государственными землями Omnibus 2009 года, который добавил почти 127 000 акров дикой природы в Национальный лес Маунт-Худ.Дополнения включают несколько областей высоко на горе, таких как Elk Cove и каньоны вдоль Белой реки.
Map It
Дальнейшее чтение
Белл, Джон. на горе Худ: биография опасного пика Орегона. Сиэтл: Sasquatch Books, 2011.
Грауэр, Джек. Маунт-Худ: полная история. 8-е изд. Ванкувер, штат Вашингтон: Джек Грауэр, 2010.
Харрис, Стивен Л. Огненные горы Запада: Каскадные и Моно Лейк Вулканы. 3-е изд. Миссула, Монт .: Издательство Mountain Press, 2005.
Хендерсон, Джордж. Одинокий на горе: мемуары лыжника. Victoria, B.C .: Trafford Publishing, 2006.
Макартур, Льюис А. и Льюис Л. Макартур. Орегон Географические названия. 7-е изд. Портленд: Издательство Орегонского Исторического Общества, 2003.
Макнейл, Фред Х. Маунт-Худ Худ МакНила: Wy’East the Mountain Revisited. Под редакцией Джозефа А. Штейна. Зигзаг, Руда: Зигзагообразные Бумаги, 1990.
Мунро, Сара Бейкер. Timberline Lodge: история, искусство и ремесло американской иконы. Портленд, руда: Timber Press, Inc., 2009.
Автор
, Спросите 20 человек, как они установили свои телевизоры с плоским экраном, и вы, вероятно, получите 20 ответов. Но каковы идеальные угол обзора и высота, чтобы получить самый захватывающий опыт просмотра телевидения?
Последнее, что вам нужно — это извиваться, щуриться или испытывать головную боль во время просмотра Fast & Furious 47. По правде говоря, это сочетание личных предпочтений, проб и ошибок.
Вот несколько простых советов.
- Средние 10 дюймов экрана находятся на расстоянии 10–20 дюймов от нижней части телевизора.Чтобы получить удобный диапазон просмотра 35-45 дюймов, нижняя часть экрана должна быть на 25 дюймов выше стены.
- Сделайте крошечный карандаш или карандаш на стене слева и справа от центра экрана.
- Держите крепление к стене примерно на 15 дюймов выше отметок, затем сделайте еще один набор отметок там, где есть отверстия для крепежных винтов.
- Если крепление подключается к телевизору в центре, у вас будет комфортная высота просмотра для всей семьи.
Высота просмотра
Если вы не проверили правильный размер экрана и расстояние просмотра для вашего дома, обязательно сделайте это в первую очередь.
Теперь давайте сосредоточимся на идеальной высоте. Здесь мы подчеркиваем «идеальный», потому что не у каждого дома есть идеальные варианты монтажа, о чем мы расскажем ниже.
Большинство действий на экране телевизора происходит в центральной трети экрана, так что это та часть экрана, которая в идеале должна быть на уровне глаз.
Самый эргономичный вид, по словам установщика Geek Squad Брэнди Йоргенсена, середина экрана телевизора должна быть на уровне глаз.Но в большинстве случаев, когда телевизор смотрят несколько человек, нецелесообразно (или справедливо) устанавливать экран только на один глаз. Из-за этого вы хотите рассмотреть комфортный диапазон для всей банды.
БОЛЬШЕ: Лучшие телевизоры 4K — телевизоры сверхвысокой четкости (UHD)
Конечно, есть несколько факторов, которые влияют на уровень глаз: ваш рост, высота подушки сиденья, расстояние до экрана от вашего места и высоты вашего экрана телевизора.Математическая формула может свести вас с ума, поэтому проведение собственных исследований поможет. Возьмите измерительную ленту и измерьте высоту глаз от пола. Скажем, это 40 дюймов.
Большинство действий на телевизоре происходит в центральной трети экрана — так что это та часть экрана, которая в идеале должна быть на уровне глаз. Если высота вашего телевизора составляет 30 дюймов, то средние 10 дюймов — это то, на чем вы обычно зациклены. Это примерно в 10 дюймах от нижнего края экрана, в зависимости от того, сколько пластикового «обрамления» вокруг видимого экрана.
(Фото предоставлено Adobe Stock)Быстрый расчет показывает, что основание вашего телевизора (и столешница подставки для телевизора) должно находиться на расстоянии около 25 дюймов от пола. Это дает вам удобный диапазон просмотра 35-45 дюймов в высоту и центр экрана прямо на уровне ваших 40-дюймовых глаз.
Единственный настоящий тест на комфортность — это метод проб и ошибок, говорит Йоргенсен. Сначала она рекомендует набрать по крайней мере двух сильных друзей, чтобы помочь вам. Затем просто сидите в своем любимом месте, пока ваши друзья начинают низко, и постепенно (и вручную) поднимите телевизор, пока он не покажется вам правильным.Конечно, вы можете следовать любому количеству формул, но в конце дня вам просто нужно комфортно смотреть на экран часами (конечно, с перерывами на попкорн). Как только вы это выясните, отметьте стену и рассчитайте ваш монтаж оттуда (советы приведены ниже).
Помните, что вы ищете диапазон комфорта, а не точные доли дюймов. Идеальная высота для настенного монтажа такая же, но несколько измерений сделают телевизор немного проще.
(Фото предоставлено Adobe Stock)Когда речь идет о горизонтальных углах, конечно, идеально иметь экран телевизора, перпендикулярный вашим глазным яблокам. Но Йоргенсен говорит, что новые телевизоры обладают такой четкостью, широкими углами обзора и частотой обновления, что «сладкое пятно» не является абсолютно необходимым, чтобы наслаждаться вашим телевизором. Она говорит, что горизонтальное положение экрана +/25 градусов вполне приемлемо. Она подчеркивает, что комфорт и уменьшение яркого света важнее, чем измерение самого угла.
ПОДРОБНЕЕ: Руководство по покупке телевизора: 11 вещей, которые нужно знать
Камин no-no
При монтаже телевизора рекомендуется устанавливать его над камином — активным или нет. Электроника внутри телевизора чувствительна и может быть разрушена интенсивным теплом, генерируемым огнем, а также случайным дымом и сажей, которые выходят и поднимаются прямо в телевизор.
Высота камина — неестественный угол, чтобы поднять голову.
Во-вторых, неудобно высокий угол обзора для установленного экрана.Причина, по которой передний ряд кинотеатра пуст, заключается в том, что у вас затекла шея после долгого просмотра.
Высота камина схожа в том, что это неестественный угол, чтобы поднять голову. Идеальный угол обзора — располагать середину экрана на уровне глаз. Но иногда у вас нет выбора; Форма комнаты, ориентация мебели и привычки использования телевизора могут диктовать необходимость ее установки над бездействующим камином.
Просто помните, что в этом случае вы захотите использовать регулируемый монтажный кронштейн, который значительно наклоняется вперед, чтобы вы не хватались за шею в течение трех часов во время Крестного отца (конечно, оригинал).Вы никогда не достигнете идеального угла, вам просто нужно наклонить экран, пока он не окажется в горизонтальной плоскости относительно вашей позиции просмотра — и вы почувствуете себя хорошо.