Лестница к дому – наружные лестницы в частном доме из дерева, фото
Как сделать входную лестницу в дом своими руками
Входная дверь частного дома является лицом его хозяина, и очень важное значение при этом играет уличная лестница. С разнообразием современных строительных материалов, монтаж и обустройство входной лестницы превращается в создание произведения искусства. Бетонные или деревянные конструкции с элементами ковки или выложенные декорированной плиткой уличные лестницы создают не только приятное впечатление, но и, при правильном монтаже, прослужат своему хозяину не одно десятилетие возле порога дома.
Какими бывают входные лестницы
Первое, что необходимо узнать при строительстве уличной лестницы и ступеней, это материал, который применяют для данной разновидности работ. Чаще всего используют:
- Дерево. При соответствующей обработке, некоторые породы древесины прослужат действительно долгое время, особенно в качестве ступенек. Конечно, стоимость любого дерева для дома сейчас достаточно высока, но не стоит забывать и о приятном внешнем виде данного материала.

Стильное сочетание дерева и ковки
- Стильное сочетание дерева и ковки
- Металл. Уличные лестницы из металла требуют проведения сварочных работ, и правильной обработки. Но длительный срок эксплуатации металла очень часто позволяет сделать выбор в сторону данного материала.

Массивная металлическая конструкция
- Массивная металлическая конструкция и оригинальные бетонные ступени
- Бетон. Материал, который достаточно просто приготовить, а его срок эксплуатации иногда более длительный чем у металлических конструкций. При наличии бетономешалки, бетонную (или сделанную из кирпича) входную лестницу можно залить за несколько дней, но на отделочные работы уйдёт куда больше времени.

Пример бетонной входной лестницы с отделкой из плиткиПример бетонной входной лестницы с отделкой из плитки
Пример бетонной входной лестницы с отделкой из плитки
Видеоролик с Youtube:
Фактически, для строительства наружной лестницы существует достаточное разнообразие строительных материалов (например, кирпич), достаточно выбрать с наиболее оптимальной ценовой политикой и длительным эксплуатационным сроком. Но данная разновидность лестниц также различается по форме своей конструкции. Это могут быть:
- Винтовые. Часто используются в домах с высоким цоколем. Могут иметь классическую форму или же обладать более прямыми углами.
- Прямолинейные. Наиболее распространённые, так как делают один ряд ступеней, на который не требуется большого количества строительных материалов.
- Уличные лестницы с площадкой. Которая монтируется с целью улучшения внешнего вида. Для площадки необходимо делать более пологие ступени.
Конечно, существует большое количество современных решений вблизи дома, но вышеперечисленные примеры являются наиболее распространёнными.
Последовательность монтажа наружной лестницы из бетона
Как было сказано выше, наиболее распространённым вариантом является наружная лестница в дом, выполненная из бетона или кирпича. Бетон – долговечный материал, не подверженный влиянию температурных перепадов, а также воздействию осадков. Следует знать, что для монтажа наружной лестницы данной конструкции можно использовать цемент марки 400.

Оригинальный и необычный дизайн
Составление чертежа
Каждая работа, особенно строительство наружной лестницы на второй этаж, начинается с предварительного размещения проекта на бумаге, со всеми реальными размерами и конструктивными элементами. Основные правила, которые должны быть учтены при проектировании наружной лестницы:

Правильный расчёт бетонной лестницы
- Конструкция входной лестницы в дом должна быть выполнена строго перпендикулярно относительно входных дверей.
- Крыльцо нельзя заливать на одном уровне с полом в доме. Его следует опустить не менее чем на 5 см.
- Стороны лестницы не должны совпадать с входным проёмом. Их следует расширить на 10-15 см в каждую сторону.
- Заливая ступени, следует помнить, что их количество должно быть нечётным. Это поможет сделать ступени максимально удобными как при подъёме, так и при схождении с крыльца.
- Высота одной ступени не должна превышать 20 см. Некоторые хозяева частных домов делают их меньше, что приводит к слишком длинной лестнице.
- Наклон ступеньки в 3 градуса создаст правильное расположение плоскости для слива дождевой воды или удобной чистки снега. Если сделать наклон большим, то он будет слишком явно ощущаться при ходьбе по лестнице.
Фундамент
Собираясь заливать входную лестницу в дом, следует помнить, что её вес будет достаточно значительным. Поэтому необходим соответствующий фундамент, способный выдержать всю конструкцию. В зависимости от глубины промерзания в регионе, глубина самого фундамента варьируется от 50 до 120 см. Последовательность создания фундамента для наружной лестницы следующая:
- Подготовка ямы. Яму необходимо вырыть немного больше, чем вся конструкция, так как фундамент является основанием и не может быть уже самой лестницы.
- После того как яма будет вырыта, на её дно необходимо насыпать слой песка, толщиной до 15 см, и разровнять его по всей поверхности. На песок насыпают слой щебня, также не более 15 см.
- Можно приступать к заливке бетона или укладке кирпича. Пропорции раствора: 4 ведра песка, 1.5 ведра цемента, количество воды варьируется в зависимости от качества бетона – он не должен быть слишком жидким, но и не следует делать его достаточно густым.

Подготовительные работы перед заливкой фундамента
Наличие бетономешалки намного упростить процесс заливки фундамента. После того как основание будет готово, его следует накрыть обыкновенной плёнкой из полиэтилена – это предотвратит появление трещин, которые могут возникнуть по мере высыхания бетона. Если плёнки нет под рукой, то раствор следует поливать водой каждые 1.5–2 часа.
Монтаж опалубки и заливка ступеней
Правильный монтаж опалубки намного упростит процесс заливки ступеней для входной лестницы в деревянный дом, но для этого следует запастить такими строительными материалами как доски, строительный уровень, полиэтиленовая плёнка, саморезы (гвозди не следует применять, так как их гораздо сложнее достать из опалубки), шуруповёрт.

Заливка ступеней и кладка кирпича
Сначала необходимо отметить верхнюю точку будущей лестницы, для этого от порога входной двери достаточно отложить 5-7 см вниз и сделать соответствующую пометку маркером. Теперь с помощью досок следует сделать 2 половины одной опалубки, высота которой должна быть равна расстоянию от земли, до той самой пометке на стене, внизу входной двери.
Далее, с внутренней стороны опалубки ступенек следует закрепить полиэтиленовую плёнку, иначе раствор впитается в доски, и снять их потом будет достаточно проблематично. Хороший вариант – обработка досок машинным маслом. После перечисленных процедур, опалубку можно устанавливать и закреплять с внешней стороны досками.
Для внутренней части опалубки необходимо подготовить каркас из арматуры. Арматуру (сечением не менее 10 мм) вяжут или сваривают в каркас, соответствующий форме лестницы. Можно его сделать немного ниже плоскости ступеней. После заливки раствором, арматура не должна остаться выше уровня бетона. После того как конструкция будет готова и установлена внутрь опалубки, можно приступать к заливке бетона.
Следует помнить, что опалубку можно снять уже через 24 часа, но настояться конструкции необходимо дать не менее 15 дней. Только при таком варианте раствор окончательно схватиться и вместе с каркасом из арматуры превратиться в единое целое.
Отделочные работы
Через 15 дней после заливки фундамента можно приступать к любому варианту отделочных работ входной лестницы в частный дом. Для отделки бетонной лестницы идеально подходит плитка, предназначенная для эксплуатации в условиях уличной среды. Даже при правильно сооружённой опалубке, бетонная лестница будет иметь некоторые неровности, которые скроет достаточное количество клея или специальной мастики.

Лестница, готовая для отделки
При укладке плитки на входные лестницы также не стоит забывать про швы, которые должны быть равными и аккуратными. Для правильного расположения шва следует использовать специально предназначенные для этого пластиковые крепления.
Как сделать наружную лестницу из металла
При монтаже металлической лестницы перед входом в дом также необходима заливка фундамента. Только для такой конструкции не требуется яма для основания глубиной в 100 или 120 см. Достаточно будет вырыть яму глубиной 70-80 см. В остальном фундамент готовится точно также, как и при лестнице из бетона: слой песка, небольшой слой щебня и непосредственно раствор бетона. После заливки, расстояние до поверхности земли должно составить не менее 20 см, это позволит потом уложить металлический швеллер.

Кованая наружная лестница
Металлические входные лестницы на второй этаж имеют следующий порядок монтажа:
- Швеллер, используемый для основания конструкции, устанавливают на фундамент и заливают раствором. На поверхности должна остаться только та часть, к которой впоследствии будет приварена или прикручена с помощью болтов вся лестница.
- Основание лестницы должно быть укреплено с помощью стандартных металлических распорок. Распорки также можно приварить между ступенями, что позволяет существенно укрепить конструкцию, сделать её практически монолитной.
- Закрепить основание лестницы и швеллер можно с помощью одинаковых металлических уголков, для соединения которых используют сварку.
- Верхнюю часть лестницы крепят к месту, расположенному на 5-7 см ниже порога в частных домах. Метод крепления следующий: просверлить пару отверстий в стене и вделать в неё арматуру, на край которой необходимо приварить металлические пластины. Конец лестницы посредством сварного шва соединяется с данными пластинами. Арматуру в стене можно дополнительно укрепить с помощью раствора.

Лестница из металла и металлическое крыльцо
После завершения работ в доме, все сварные швы конструкции на второй этаж необходимо тщательно отшлифовать, лишние капли металла можно убрать болгаркой. После шлифовки приступают к зачистке каркаса и последующей его покраске. В качестве ступеней используют листы металла, толщиной 3-5 мм, которые крепят к каркасу с помощью болтов.
Наружная лестница, выполненная из дерева
Древесина является достаточно долговечным материалом для строительства дома, требующим тщательной и скрупулёзной обработки. При выборе дерева для монтажа наружной лестницы в частных домах экономить не стоит, наиболее подойдёт качественно высушенный дуб, как более бюджетный вариант можно использовать сосну. Основные показатели качества бруса:
- Отсутствие грибка, плесени, тёмных пятен. При наличии вредителя, срок эксплуатации дерева снаружи дома сократиться до нескольких месяцев.
- Хорошо высушенный материал. Если древесина не была просушена, то после установки, через небольшой временной промежуток, всю конструкцию поведёт в стороны. Поэтому следует выбирать только сухие доски.
- Минимальное количество или полное отсутствие трещин. Даже самая незначительная трещина может перерасти в длинную борозду, распространившуюся по всей длине доски.
Даже для деревянного каркаса, например, на второй этаж, необходим фундамент возле дома. Чаще всего это основание, выполненное в виде небольших столбов, размерами 20 на 20 см и глубиной около 40 см. Для большей крепости, после заливки фундамента, в него можно воткнуть несколько арматурных прутов. Это обеспечит большую надёжность конструкции.
Видеоролик с Youtube:

Надёжная деревянная конструкция
Деревянная лестница в частных домах собирается по типу обыкновенного детского конструктора. Во всех элементах делаются специальные пазы, которые обеспечат устойчивость и надёжность всей конструкции. Но недостаточно вставит несколько элементов лестницы друг в друга, их также необходимо скрепить с помощью гвоздей или простых саморезов.
Закончив строительство деревянного каркаса возле крыльца дома, его следует обшить досками. Доски крепятся к каркасу гвоздями или саморезами. Один из основных элементов каждой лестницы – это перила, которые можно очень быстро приготовить из обыкновенного бруса, использующегося раннее для строительства каркаса. Конечно, намного эффектнее будут смотреться уже готовые балясины из дерева, но при этом они имеют куда большую цену.
Фотогалерея изысканных входных лестниц














viascio.ru
Лестница перед входом в дом: рекомендации по изготовлению
Крыльцо любого здания, будь то частный дом или общественное строение, с одной стороны, должно выделяться на общем фоне сооружения, привлекать к себе внимание, с другой ̶ быть безопасным и комфортным в эксплуатации. Этим же качествам должна удовлетворять и крылечная лестница.
Не играет роли этажность здания, она в большинстве случаев, должна быть даже у небольшого одноэтажного домика. Рассмотрим, что представляет собой лестница перед входом в дом, из каких материалов она может быть выполнена, какие варианты конструкций существуют.

Главный вход в здание
Содержание статьи
Описание конструкций
Как правило, дверной порог располагается на некотором возвышении от поверхности, на которой установлено строение. Для удобного подъема крыльцо комплектуется лестницей. Это может быть небольшая конструкция, насчитывающая две-три ступеньки, или роскошная составляющая входной группы.

Примитивное сооружение

Применение натурального камня
Сооружения для входа в дом имеют, как правило, маршевый тип. Они могут располагаться фронтально относительно входной двери или сбоку от нее.

Напротив входной двери
Боковая разновидность может быть одно- или двусторонней.

Боковая

Из бетона с забежными ступенями
Формы могут быть самыми разнообразными: от простой прямоугольной до самой причудливой. Конструкция может отличаться прямолинейностью, или иметь плавные формы.
Какие требования предъявляются:
- Долговечность. В принципе, сооружение может быть и временным, однако такое оно устанавливается в случаях, когда на возведение капитального типа нет времени или средств.

Временная
- Безопасность. Перемещение не должно сопровождаться риском причинить себе увечье.
- Комфортность. Параметры маршей должны быть грамотно рассчитаны для удобного пользования конструкцией.
- Прочность и надежность.
Следует грамотно все рассчитать, при строительстве использовать качественные материалы и не нарушать технологию.
Открытые конструкции удобны для спуска в любых направлениях. Однако для безопасной эксплуатации по бокам могут быть установлены ограждения. Они могут быть решетчатыми, экранными или комбинированными.

Металлические ограждения
Материалов — большое разнообразие. Это могут быть: кирпич, бетон, дерево, натуральный камень, металл, различные комбинации из них.
Параметры сооружений
Требования указаны в нормативной документации на строительство: СНиП 21-01-97 «Пожарная безопасность зданий и сооружений», СНиП 31-02-2001 «Дома жилые одноквартирные», СНиП II-25-80 «Деревянные конструкции», ГОСТ 23118-2012 «Конструкции стальные строительные», ГОСТ 23120-2016 «Лестницы маршевые площадки и ограждения стальные», ГОСТ 8717-2016 «Ступени бетонные и железобетонные».
Основные параметры:
- Ширина марша должна быть не менее 0,9 м (для детских учреждений, домов престарелых, больниц, установлена норма в 1,35 м)
- Высота ограждений уличных маршей ̶ не менее 1,2 м.
- Глубина проступи не должна быть менее 25 см.
- Высота ступени не должна превышать 22 см.
В изготовлении конструкций и оформлении зданий различного назначения используются различные приемы.
- Если для частных загородных домов большое значение имеет совместимость дизайна крыльца с фасадом дома и ландшафтом (варианты конструкции в этом случае не в последнюю очередь определяются достатком владельца), то для сельскохозяйственных и промышленных строений в первую очередь важна надежность и функциональность.
- Для входа в офис нефтяного гиганта, имеет значение презентабельность.
- Пятизвездочному отелю нужно продемонстрировать роскошь.
- Продуктовому магазину важно обеспечить безопасность и удобство посетителям, в том числе — малоподвижным категориям.
Оформление
Для придания привлекательности, используются всевозможные приемы в конструкции и материалах ограждений и облицовки.
Ограждения
Самыми распространенными материалами для устройства ограждений, являются дерево, металл, камень и стекло. Кованые металлические изделия, деревянные балясины украшают и придают любой, даже самой простой лестнице красоту и изящество.

Кованые ограждения

Ограждения из камня
Облицовка
Если выполнить отделку ступеней, лестница может приобрести совершенно иной облик. Для облицовки используют дерево, ДПК, плиточные материалы, а также готовые ступени из клинкера, керамогранита, природного камня, искусственного камня.

Отделка ступеней крыльца деревом
Отделочный материал должен обладать следующими качествами:
- Водо-, температуро-, морозостойкость.
- Прочность.
- Хороший коэффициент сопротивления скольжению.
Важно! При отсутствии этого качества у материала, на ступени следует обязательно прикрепить противоскользящие накладки.
- Долговечность.
- Красивый внешний вид.
Виды плитки для облицовки ступеней:
- Клинкерная. Один из самых прочных, стойких и привлекательных материалов. Однако, и цена на него соответствующая.

Клинкерная плитка о облицовке крыльца
- Керамическая. Плитка с хорошей стойкостью к влаге и температурам, с большим сроком службы.

Оформление
- Керамогранитная. Материал с хорошей стойкостью к износу, практически не поддающийся воздействию внешней среды. С повышенной скользкостью следует бороться специальными насечками или противоскользящими накладками.

Отделка керамогранитом
- Резиновая. Хороший по эксплуатационным качествам вариант, однако такая плитка имеет не самый привлекательный внешний вид, и срок службы ее не превышает 8-10 лет.

Степени
- Пластиковая. Легкая, стойкая к воздействиям плитка. Однако, пока нет большого разнообразия расцветок и текстур.

Отделкау входа в дом с помощью пластиковой плитки
- Тротуарная. Прочное, надежное покрытие, минусами являются внешняя простота и не слишком хорошая водостойкость.

Ступени для входа в дом из тротуарной плитки
Для облегчения работ по облицовке крыльца используют готовые ступени из разных материалов.
Образцы ступенек входа в дом:
Проанализировав разные варианты ступенек входа в дом, можно подобрать свой, удовлетворяющий индивидуальным представлениям о прекрасном. Рассмотрим изготовление своими руками. В качестве примера возьмем бетонную конструкцию.
Процесс строительства иллюстрирует видео в этой статье.
Изготовление бетонной входной лестницы
Поэтапная инструкция производства:
- Проектирование конструкции. От грамотности сделанных расчетов зависит прочность и срок службы.
- Подготовка материала и инструментов. Понадобятся: цемент марки от М400, гравий, речной песок и арматура.
Важно! Качество приобретенного материала сильно влияет на характеристики.
- Заливка фундамента. Бетонная конструкция имеет приличный вес, поэтому для нее следует предусмотреть отдельный фундамент. Его вид выбирается в зависимости от веса сооружения и типа почвы. Фундамент крыльца не должен соприкасаться с фундаментом здания. Между ними нужно проложить деформационную прослойку (обычно ее делают из минваты).
- Установка опалубки, повторяющей форму крыльца. Ее можно изготовить из досок, фанеры, или пластика (если ступени имеют криволинейную форму). Внутреннюю сторону досок лучше обработать машинным маслом, чтобы потом проще было осуществлять демонтаж. Если впоследствии будут устанавливаться перила, нужно установить закладные детали.
- Армирование конструкции. Понадобятся арматурные стержни, связанные между собой или сетка (как на фото).

Опалубка с установленной арматурой
- В бетономешалке смешивается раствор из части цемента, 3 частей щебня, 2 частей песка и воды. Бетон заливается в опалубку. Для лучшей плотности смеси следует провести обработку глубинным вибратором.

Залитая бетоном
- Бетонное сооружение накрывается полиэтиленом. Опалубку можно будет снять через неделю, а отделочные работы начинать не ранее, чем через месяц после заливки.

Применение бетона
В статье были рассмотрены различные варианты устройства и оформления лестницы на входе в дом. Стоит надеяться, что предоставленная информация поможет выбору оптимального варианта.
olestnicah.ru
Лестница к дому наружная — Всё о лестницах
Уличные лестницы для загородного дома – виды, материалы и особенности постройки
На завершающем этапе возведения дачи или загородного дома строится наружная лестница. Внешне такие конструкции ничем не отличаются от тех, которые используются для соединения этажей, однако к ним предъявляются более высокие требования касательно прочности. Такие конструкции должны хорошо выдерживать перепады температур, влияние атмосферных осадков и т. д.
Наиболее долговечными и надежными приятно считать лестницы из бетона, которые изготавливаются непосредственно на строительном объекте. Однако нередко используются металлические и деревянные конструкции.

Железные лестницы для улицы могут вести как на первый, так и на второй этаж.
Устройство уличной лестницы следует продумывать ещё на стадии возведения дома. Благодаря такому подходу вы сможете не только правильно рассчитать и расположить лестничную конструкцию, но и обеспечить ей максимальную защиту от условий внешней среды.
Предназначение уличных лестниц
Уличные лестницы являются очень важными в хозяйстве. Посредством их возведения осуществляется связь дома с прилегающей территорией, то есть, соединение двух участков, расположенных на разных уровнях.
На сегодняшний день различают несколько вариантов устройства наружных лестниц:
- Входные ступени (крыльцо) – наиболее частый вариант. В том случае, если территория располагается под наклоном, может понадобиться даже целый лестничный марш.
- Соединение верхней лестничной площадки с террасой.
- При наличии высокого цокольного этажа.

На фото – крыльцо из камня.
- Лестница с улицы на второй этаж, посредством которой создается дополнительный вход в помещение, в которое можно попасть изнутри здания.
- Если речь идет о курортах, то в таком случае нередко используются двухэтажные коттеджи, в которых на каждом этаже расположено отдельное жилое помещение, не сообщенное с другими совместным коридором. В таком случае уличная лестница на второй этаж является очень удобным вариантом.
- Пожарные уличные лестницы на второй этаж, предназначенные для эвакуации, – также не редкость.
- Многие домашние мастера интересуются, как сделать лестницу на чердак с улицы, поскольку данный вариант экономит внутреннее пространство частного дома, отведенное для обустройства лаза.
Устройство лестниц
Уличная лестница в дом бывает таких видов:
- Вертикальное расположение для быстрого поднятия на крышу или мансарду.
- Винтовые лестницы.
- Обычные маршевые конструкции, как прямо- так и криволинейные, которые могу быть расположены параллельно, перпендикулярно или под углом относительно стены.
- В том случае если рельеф характеризуется большими перепадами высот, можно устроить в склоне садовые ступени.
Они бывают двух видов:
- Врезанные в склон, упираясь на плотно утрамбованный грунт.
- Выступающие, опирающиеся на специально обустроенные подпорные стенки.

Для оформления садовых ступеней лестниц могут быть использованы доски, известняк, гравий, бревна, тротуарная плитка, песчаник – в общем, любые материалы, которые окажутся у вас под рукой. Промежутки между такими ступенями составляют в среднем 3-7 см, то есть, такие лестницы являются «мелкими».
Совет!
Во избежание развития корневой системы, плодоносный грунт необходимо убрать, посыпав участок песком, который плотно утрамбовывается.
По бокам таких дорожек обычно устраивается газон, что придает ступеням эффектный внешний вид.
Выбираем материал
- Железобетон. Как входные ступени крыльца, так и дополнительные лестничные конструкции для второго этажа нередко изготавливаются из железобетона. Данный материал является очень долговечным и надежным, характеризуясь высокой сопротивляемостью к воздействию атмосферных явлений. Арматурный стальной каркас лишь придает конструкции прочности.
Такие лестницы могут быть как монолитными, так и выполненными из готовых блоков. В случае с монолитом – бетон заливается в опалубку с предварительно установленной стальной арматурой.

Железобетонная лестничная конструкция.
Совет!
На твердых грунтах можно заливать железобетонные конструкции без армирования.
- Керамический кирпич. Очень часто для ступеней используют рядовой, облицовочный или клинкерный кирпич. При этом клинкер является самым выигрышным вариантом, поскольку специально предназначен для мощения дорожек.
Очень часто при использовании кирпичных блоков возникают определенные трудности при укладке. Очень важно здесь подобрать взаимное расположение кирпичей, дабы не выйти за пределы установленных размеров. Самым оптимальным вариантом является укладка двух блоков пастелью друг на друга.
Совет! Дабы не выйти за пределы расчетов, можно использовать кирпич нестандартных форм (характерно для клинкера), или же обрезать некоторые блоки до нужных размеров.
Такие конструкции обычно устанавливаются на бетонном или гравийно-цементном фундаменте.

- Уличные металлические лестницы распространены не меньше, чем бетонные. Металл позволяет воплощать любые дизайнерские решения, потому среди таких изделий присутствуют как дешевые чердачные лестницы. так и конструкции премиум-класса, цена которых будет не по карману многим владельцам частных домов.
Как правило, хозяйственные, эвакуационные и дополнительные лестницы выполняются именно из металла. Такие конструкции могут собираться из арматуры, профилей, уголков или труб различных диаметров, соединяясь посредством сварки или винтов.
Совет!
Для защиты металлических ступеней от коррозии их желательно окрасить.
Если говорить о кованых моделях, то они очень прочны и долговечны, при этом отличаясь оригинальным и привлекательным дизайном. Однако они довольно дорого стоят и являются очень массивными.
- Дерево. Деревянные уличные лестницы – это тоже не редкость. По большей части их изготавливают для деревянных домов. Для защиты от гниения дерево обрабатывается антисептиком и покрывается водостойкой краской.

Конструирование лестницы из дерева.
Совет!
Для обеспечения пожаробезопасности древесина должна пройти обработку огнезащитными средствами.
Установка деревянной конструкции.
Делаем железобетонную лестницу
Поскольку железобетонные лестницы являются на сегодняшний день одними из наиболее востребованных, то мы разберем, как правильно залить такую конструкцию своими руками.
Инструкция предусматривает несколько этапов:
- На первом этапе работ изготавливается опалубка. Вы должны заранее подготовить все материалы, которые необходимы для данного этапа – бруски, доски, гвозди, фанерные щиты. Доски и фанерные щиты будут крепиться гвоздями к брускам. При создании опалубки необходимо следить за тем, чтобы не возникало щелей или зазоров.
Совет!
Для опалубки лучше всего использовать влагостойкий листы фанеры, толщиной 2-2,5 см.
Желательно кроме фанеры использовать также пригнанные друг к другу доски, что упростит дальнейшие отделочные работы.
Сама конструкция опалубки может быть двух видов:
- Общая, то есть, вы изготавливаете каркас для всей лестницы, заливая его бетоном за один раз.
- Для каждой ступеньки устанавливается новая опалубка. Для достижения максимально ровных по высоте и размеру ступеней лучше будет использовать этот вариант.

Опалубка под железобетонную лестницу.
- Насыпаем на дно опалубки дренажный слой, который состоит из кирпичной крошки и гравия в соотношении 1:1.
- Создаем армированный каркас. Перед тем, как наполнить опалубку бетоном, в неё желательно заложить арматурный каркас. Стальные стержни размещаются вдоль лестничного марша. Их диаметр составляет 10 мм. Между собой они прочно соединяются проволокой или электросваркой.
Для армирования лестницы также отлично подходит сетка с размерами ячеек 150 на 150 мм. Передние кромки ступеней желательно укрепить при помощи поперечной арматуры, что предотвратит их крошение.
Совет!
Перед тем, как залить раствор цемента, опалубку следует смочить водой.
- Теперь можно перейти непосредственно к заливке бетонного раствора. Его замешивают в бетономешалке из цемента, щебня и песка в пропорциях 1:3:3. Раствор должен быть густым.

Установка лестниц различных видов.
После заливки каждой ступеньки следует делать перерыв около пяти минут, чтобы давление, осуществляемое последующей ступенькой, удерживалось лучше. Также каждую ступень следует выравнивать при помощи специальных инструментов.
Спустя два дня после заливки бетона, опалубку можно убрать. После этого можно приступать к облицовке. Железобетонная лестница будет отлично смотреться с керамической плиткой, деревом или естественным камнем.
Заключение

Так уж повелось, что даже в одноэтажном доме присутствует лестница, расположенная снаружи здания. Она должна быть надежной и долговечной, имея при этом привлекательный внешний вид, а потому требует тщательного расчета. В представленном видео в этой статье вы найдете дополнительную информацию по данной теме.
Красивая наружная лестница к дому: проектирование и дизайн
По оформлению данного сооружения складывается впечатление, как о доме, так и его хозяине Архитектурные лестничные конструкции в наши дни поражают своей замысловатостью и изяществом. Если раньше в качестве наружных лестниц можно было найти лишь узкие пожарные лестницы, то теперь, когда люди научились экономить каждый квадратный метр жилой площади, все чаще и чаще лестницы, ведущие на второй этаж, стали выносить наружу, где пространства достаточно много. Это позволяет дать волю фантазии и мастерству, и сотворить из лестницы настоящее чудо света.
Что такое наружная лестница: разновидности и дизайн
Любой подъем на высоту выше уровня земли предполагает наличие какого-либо устройства, с помощью которого человек сможет подняться на эту необходимую высоту. Одним из разновидностей таких устройств есть лестница.
Для домашнего использования уличная конструкция должна быть максимально удобной и безопасной
Наружная лестница – это конструкция, с помощью которой человек может попасть снаружи дома вовнутрь. Такими лестницами могут быть оборудованы как жилые дома, так и общественные здания.
Наружные лестницы применяются так широко, что если оглянуться по сторонам, то можно заметитьодин факт: практически в каждом строении имеется хотя бы маленькая наружная лестница.
В каких случаях используются наружные лестницы:
- Для входа в одноэтажный дом с высоким фундаментом;
- При необходимости входа на чердак дома;
- Для спуска в подвал;
- Чтобы подниматься на второй, или третий этаж жилого дома;
- Для межэтажного сообщения в домах гостиничного типа или в общественных зданиях;
- Как пожарный запасной выход.
Так же наружные лестницы применяются в обиходе человека для других целей, например для выхода на террасу, или на подступах к высокой беседке.
Наружная лестница в дом: типы объектов
Материалом для строительства наружной лестницы в дом может быть любой высокопрочный строительный материал. Кроме того, этот материал должен гармонировать с внешним фасадом дома, к которому он будет пристроен.
Конструкция, ведущая в холл загородного дома, должна быть в первую очередь красивой. Здесь важно продумать и материалы и отделку
Наружная лестница в дом может быть широкой или узкой, ровной или извилистой. Так же при ее строительстве приветствуется комбинирование стилей и материалов.
В зависимости от области применения лестниц, они разделяются на виды соответственно количества пролетов, или маршей.
Виды наружных лестниц, ведущих в дом:
- Одномаршевые прямые лестницы;
- Одномаршевые винтовые лестницы;
- Двухмаршевые винтовые лестницы;
- Двухмаршевые поворотные лестницы;
- Угловые двухмаршевые лестницы.
Кроме того, наружной лестницей может называться небольшая металлическая, бетонная или деревянная лестница, состоящая из трех – четырех ступеней, ведущих в дом.
Материалы для наружной лестницы к дому на второй этаж
Главным условием лестницы является то, что она должна быть прочной, и выдерживать большую нагрузку. Кроме того, не маловажным фактором остается и дизайн лестницы. Большая, громоздкая конструкция будет не совсем красиво выглядеть у изящного дома. Именно поэтому зачастую наружные лестницы оборудуют из какого-либо прочного металла. Украсив такую лестницу коваными перилами или отшлифованными до блеска стальными перекладинами, вы предадите ей величественный и благородный вид.
В каждом многоэтажном строении есть лестница. Даже частный дом, имеющий только второй этаж, должен быть оснащен такой конструкцией
Наружная лестница, ведущая на второй этаж, может быть выполнена и из любого другого материала, который подходит для изготовления маршевых лестниц.
Дизайн вашей лестницы будет зависеть от дизайна вашего дома, или усадьбы в целом.
Перечень материалов, из которых могут быть изготовлены наружные лестницы к дому на второй этаж:
- Деревянный сруб;
- Бетонные конструкции;
- Железобетонные конструкции;
- Металлический профиль;
- Комбинированные модели лестниц.
Оригинально смотрятся винтовые одномаршевые лестницы, ступени которых выполнены из бетона, а перила из кованых ограждений. Так же, часто можно увидеть лестницы, у которых металлические ступени и деревянные лакированные перила.
Строительство и монтаж объекта: наружная лестница на второй этаж
Первым правилом, которое вы должны учесть при подготовке к строительству наружной лестницы к дому на высоту больше одного этажа своими руками, является разработка проекта возводимого вами объекта. Не пренебрегайте этим правилом так, как от этого зависит жизнь ваша и членов вашей семьи.
Изделия из бетона требуют очень прочного основания и много времени на изготовление, но при этом они являются самыми прочными и долговечными
Наружная лестница к дому на второй этаж требует тщательного подхода при своем строительстве. Проекты таких лестниц должны проходить экспертизу в специальных учреждениях.
Если вы желаете оборудовать свой дом наружной лестницей, ведущей к входу на второй этаж, проконсультируйтесь со специалистом, или воспользуйтесь услугами проектного бюро, где учтя все ваши пожелания и размеры лестницы, вам помогут сделать грамотный проект. Лестница, ведущая на второй этаж дома должна быть не только красивой, но и должна отвечать многим архитектурным нормам.
Основные требования для лестницы, ведущей на второй этаж:
- Лестница должна быть очень прочной.
- Ступени лестницы должны быть выполнены из материала, по которому даже в дождливую погоду не будет скользить обувь.
- Перила должны быть безопасными, расстояние между прутьями должно быть не более 12 см
- Высота перил должна быть по правилам, не меньше 90 см Если в доме есть дети, то высоту ступеней необходимо делать не менее 1,5 м.
- Перила должны выдерживать нагрузку не менее 100 кг.
- Лестница не должна быть крутой. Максимальный уклон лестницы 50 градусов.
- Позаботьтесь о ширине лестницы. Она должна соответствовать, хотя бы, не менее 90 см По нормам на марше лестницы должны легко разойтись два человека.
- Максимальная высота ступеней лестницы должна быть не более 20 см
- Минимальная ширина ступеней наружной лестницы должна быть не менее 25 см
Число ступеней лестницы лучше всего делать нечетное, так как людям легче начинать и заканчивать свое движение по лестнице из одной и той же ноги.
Лестница наружная к дому как украшение усадьбы
Несмотря на все требования, которые нам выдвигают строительные нормы и правила, дизайна лестницы, все-таки, зависит многое.
Наружные лестницы всегда считались украшением дома. Они словно дополняют общую тему одного роскошного дизайна.
Красивое крыльцо частного дома может быть декорировано по-разному. Любая уличная лестница предоставляет своему владельцу широчайшее поле для проявления фантазии при оформлении
Даже если у вашего дома всего один этаж, то вы тоже можете украсить свою усадьбу каким-либо лестничным элементом. Для этого стоит лишь возвести у себя на участке подъем, количеством ступеней больше трех. Для этого объекта архитектуры тоже подойдет определение «лестница».
Какими могут быть внешние лестничные элементы на приусадебном участке:
- Лестница к порогу дома, где расположены входные двери. Если высота вашего фундамента более 60 см, вы смело можете оборудовать небольшую изящную наружную лестницу у входа в дом.
- Лестница в сад. Выложенные из кирпича или природного камня большие ступени отлично украсят ваш приусадебный участок.
- Подъем на чердак. В каждом частном доме имеется чердак, и лестница, ведущая в это пространство. Используя этот факт, вы смело можете оборудовать фасад своего дома элегантной лестницей.
- Лестницей могут быть даже простые многоуровневые переходы между участками вашего двора, облицовка которых выполнена с помощью декоративной плитки или камня.
Даже закрытые ступени в беседку могут называться наружной лестницей.
Конструкция наружной лестницы к дому (видео)
Грамотно спроектированная и качественно построенная наружная лестница к дому станет настоящим украшением вашего дома и приусадебного участка. А применение новейших дизайнерских технологий поможет создать у себя дома настоящее произведение искусства.
Дизайн наружной лестницы к дому (фото примеров)
Наружные лестницы фото, лестницы уличные для дачи и дома, конструкции и расчет металлических наружных лестниц на второй этаж
Наружные лестницы – это такие же важные элементы оформления жилища, как окна или двери. Без хороших ступенек на крыльце не войти в дом, а без конструкции, высящейся до второго этажа, не забраться на чердак. Уличные конструкции для дачи от внутренних межэтажных аналогов отличаются исключительной прочностью и износостойкостью.
Выделяют крылечные (входные), эвакуационные, хозяйственные лестницы уличные, которыми удобно пользоваться как в обычной жизни, так и в экстренных ситуациях. Первые ведут к входу, а остальные обеспечивают беспрепятственный доступ на второй этаж.
Наружные лестницы для дачи и дома, расчет проектирование уличных лестниц
Уличные лестницы на второй этаж
Подниматься на второй этаж удобно не только с первого уровня, но и с улицы. Например, когда в доме много гостей и хочется убежать от всех максимально незаметно, или когда требуется быстро забраться к себе в комнату, минуя переходы гостиную и кухню. Наконец, наружная лестница на второй этаж дома может пригодиться при экстренной эвакуации во время пожара или наводнения.
Уличные лестницы на второй этаж для дачи обычно изготавливаются из металла. Этот материал как нельзя лучше выдерживает прихоти природы, не боится больших нагрузок, не нагружает фундамент и не требует специальной подготовки основания.
Для домашнего использования уличная конструкция должна быть максимально удобной и безопасной. Хорошим вариантом является винтовая лестница наружная металлическая с рельефными или перфорированными ступеньками. Для уменьшения скольжения во время подъема и спуска, можно выбрать конструкцию с резиновыми или полиуретановыми вставками.
Устанавливать комплекс рекомендуется с торца дома, чтобы с улицы его не было видно посторонним людям. Балконные двери, к которым ведут ступеньки, в отличие от классических балконных стеклопакетов, должны закрываться на замок.
Входные ступеньки
Крыльцо – это парадная часть коттеджа, а потому к нему предъявляются несколько другие требования, нежели к приставным наружным лестницам. Конструкция, ведущая в холл загородного дома, должна быть в первую очередь красивой. Здесь важно продумать и материалы, и отделку. Для создания крылечных ступеней используют древесину, металл, кирпич. Самым же востребованным материалом является бетон.
Бетонные ступени выглядят мощно и одновременно надежно. Монолитная линия подъема в отличие от легких металлических лестниц наружных может быть отделана декоративным камнем, плиткой или деревом. Красиво смотрятся округлые ступени с широкой проступью, обрамленные ажурной ковкой ограждений.
Бетонные образцы, однако, имеют и свои недостатки. Это, в частности, хлопотный процесс монтажа. Цементно-бетонный раствор, залитый в опалубку, долго сохнет и схватывается, в результате чего лестницей нельзя пользоваться первые дни. Кроме того, после укладки базы требуется длительная отделка. Утешает только то, что пользоваться этим монументальным шедевром можно всю жизнь.
Только взгляните на эти красивые и солидные образцы архитектурного творчества, и вы поймете, что наружные лестницы могут быть красивым дополнением к фасаду коттеджа.
И еще немного полезного о лестницах
Как сделать временную лестницу?
Иногда второй этаж пристраивается к дому же позже, а строительство уличной лестницы займет какое-то время. Что же делать в этом случае? Соорудить самую простую наружную лестницу на второй этаж – деревянную, на тетивах, на несколько ступенек. Кроме того, такие лестницы – излюбленный вариант многих дачников. Правда, особой крепостью она не отличается, поэтому не стоит подвергать ее излишним нагрузкам и испытаниям.
Такая лестница не имеет традиционных подступенков. Все, что вам понадобится – это две достаточно длинные доски, для тетив, а также несколько досок для проступей. Закрепляются проступы с титивами при помощи обычных деревянных брусков, которые закрепляются с внутренней стороны.
Стоит ли делать кирпичную лестницу?
Когда дело доходит до сути, возникает резонный вопрос – а из чего все-таки делать эту самую лестницу? Почему-то чаще всего выбор падает именно на кирпич. Однако специалисты утверждают, что это не самый лучший вариант – лучше сделать выбор в пользу металлической лестницы или железобетона. К слову, лестницы на второй этаж из металла можно купить или заказать в готовом виде, останется их только собрать и установить. А вот небольшие лестницы, буквально на несколько ступенек, которые не требуют особого оформления, как раз стоит выкладывать из кирпича.
Для строительства лестниц можно использовать только определенный кирпич – керамический пустотелый, одинарный, толщиной 65 мм и шириной 120мм. В некоторых случаях можно использовать и двойной кирпич – в этом случае ступенька получится немного большего размера – обязательно учитывайте этот фактор.
Как бороться с усадкой здания?
Очень часто можно услышать жалобы на то, что через несколько лет абсолютно крепкая лестница начинает разрушаться. Объясняется это просто – любое здание рано или поздно начинает давать усадку. И, соответственно, тянет за собой лестницу, деформируя ее. Но происходит это только в том случае, если расчет уличной лестницы изначально был выполнен неправильно. Чтобы не допустить деформации лестницы, ее нужно отделить от стены деформационным швом. Тогда здание, дающее усадку, никоим образом не повлияет на саму лестницу. Варианты обустройства кирпичной лестницы демонстрирует чертеж.
Нужно ли делать отвод воды?
Очень часто люди напрочь забывают о такой немаловажной детали, как отвод воды со ступенек. А некоторые из них полагают, что конструкция лестницы не требует таких дополнений, достаточно козырька над лестницей. Но ведь дождь-то может быть и косым! Поэтому отвод воды должен быть в любом случае – это вопрос не только вашего комфорта, но и сохранности лестниц.
Если лестница небольшая – всего несколько ступенек – достаточно сделать их слегка покатыми, чтобы вода стекала с них сразу же. Ну а если у вас большая наружная лестница, и покатые ступени не выход, то остается только одно – установка по бокам лестницы специальных желобов, по которым вода будет покидать лестницу.
Как огородить лестницу?
Внешние лестницы без ограды допустимы только в одном случае – если они состоят не более чем из 5 ступенек. Ведь безопасность – превыше всего! А потому любой проект уличной лестницы включает в себя ограждение. Как правило, дачные лестницы огораживаются либо обычными деревянными поручнями, либо металлическими – этот факт нужно учитывать еще на стадии крепления к фундаменту или кирпичной кладке лестницы.
Как отделать ступени?
Отделка уличной лестницы – заключительная часть работы и весьма ответственная. Ведь именно от материала, выбранного вами для отделки, будет зависеть безопасность всех, кто будет ходить по этой лестнице. Самое простое и разумное решение – это облицовка лестницы керамической плиткой.
Само собой разумеется, что глазурованная в этом случае не подходит! Поверхность плитки должна быть шероховатой, либо вообще рифленой. Ну а в том случае, если речь идет не о дачном домике, куда вы приезжаете только в теплое время года, а о ступенях для коттеджа, где вы проживаете постоянно, от плитки стоит вообще отказаться. В зимнее время снег будет стаптываться и любая плитка будет очень сколькой. Поэтому обратите свое внимание на плиты, изготовленные из дикого камня – их структура просто идеально справляется с поставленной задачей. Именно такие ступени показаны на фото.
Как защитить лестницу от природного воздействия?
Строительство лестницы на второй этаж с улицы своими руками включает очень много важных этапов. Например, очень важно помнить, что внешние лестницы подвергаются воздействию различных природных явлений, таких как дождь, снег, туман. И для того чтобы лестница служила верой и правдой не один год, нужно позаботиться о ее защите.
Причем самой эффективной защитой станет правильный выбор материалов для изготовления самой лестницы – предпочтение стоит отдать таким влагостойким материалам, как кирпич, камень, бетон или, в крайнем случае, специальным образом обработанная древесина. Кроме того, не лишним станет навес над лестницей – это защитит ее от прямого попадания влаги и продлит срок службы.
А я еще никак не могу решить – то ли кирпичную лестницу делать, то ли уже вечную, бетонную лестницу. По деньгам так никакой особой разницы нет. Правда, боюсь, что кирпич может дать усадку – фундамент в любом случае нужен будет каптиальный – больно уж лестница большая получается. Еще и жена просит красивую лестницу. Вот что ей красивее будет?
А у меня на чердак на даче ведет наружная винтовая лестница. Сам знаю, что извращение. И что железные лестницы зимой смерти подобны. Тока строил не я, дед. А он и помыслить не мог, что я буду тут жить круглый год! Вот теперь пытаюсь выбрать прикольный дизайн уличной лестницы, чтобы вот и по этажам зимой прыгать, и пристроить было просто…. Короче, спасибо. Озадачился всерьез. Пойду выбирать варианты.
Источники: http://sdelai-lestnicu.ru/widy/160-ulichnye-lestnicy-dlya-zagorodnogo-doma, http://kitchenremont.ru/remont/lestnitsy/naruzhnaya-lestnitsa-k-domu, http://gidpostroyki.ru/konstrukcii/naruzhnye-lestnicy-foto-lestnicy-ulichnye-dlya-dachi-i-doma-konstrukcii-i-raschet-metallicheskix-naruzhnyx-lestnic-na-vtoroj-etazh.html
lestnica-mpl.ru
пошаговая инструкция строительства своими руками, а также много фото и видео
Входная лестница – немаловажный функциональный элемент любого частного дома либо загородной дачи. Кроме того, это своего рода, лицо жилища, поскольку первое впечатление о нем и о его хозяевах создается именно по лестнице на входе.
Какими должны быть входные лестницы в частных домах, а также как построить такую конструкции своими руками по приведенной инструкция – об этом и расскажет данная статья.
Красивая и оригинальная входная лестница в частный дом может стать визитной карточкой хозяев жилищаВходная лестница – какой вариант выбрать
Итак, какими должны быть ступеньки, ведущие в дом? Прежде всего безопасными, прочными и эстетически красивыми. Чтобы обзавестись такой конструкцией у владельца частного дома есть три пути:
- Купить уже готовую входную систему в специализированном супермаркете.
- Пригласить бригаду строителей (либо одного мастера) для того, чтобы возвели ступенчатую конструкцию на входе в дом.
- Сделать лестницу своими руками по приведенной здесь инструкции.
Возведение входных ступней, ведущих в дом, можно заказать профессионалу, а можно и сделать самомуДанная статья посвящена тем, кто не ищет легких путей и решил самостоятельно соорудить конструкцию.
Что необходимо учесть
При возведении объекта следует уделить внимание таким моментам:
- Придумать (или позаимствовать) такой дизайн конструкции, чтобы соответствовал общей стилистике частного жилища.
- Подобрать подходящий материал для строительства.
- Подготовить необходимый инвентарь.
- Смонтировать лестницу по приведенной инструкции строительства.
Перед строительством входной конструкции необходимо определиться с типом лестницы, материалом изготовления и инструментомКакие входные лестницы бывают
Ступенчатые входные конструкции классифицируются в зависимости от материала изготовления на:
- Деревянные.
- Металлические.
- Бетонные либо кирпичные.
- Комбинированные.
Входные лестницы могут быть самыми разнообразными по типу — от простых прямых до сложныхДеревянные
Данные конструкции очень распространены на дачах и являются практически классикой. Входные деревянные ступеньки достаточно просты в монтаже и экономичны, однако имеют и ряд недостатков, среди которых основным является их недолговечность. Под воздействием климатических условий дерево быстро приходит в негодность, особенно если оно не было должным образом обработано.
Деревянные входные лестницы — отличный вариант для загородного дома либо дачи, однако он требует дополнительных работ по обработке дереваМеталлические
Это надежные и долговечные системы, которые можно сварить самостоятельно, приобрести в магазине либо пригласить для сооружения профессионала. Такие лестницы нужно как следует обработать антикоррозийным составом, чтобы они не покрывались с годами ржавчиной.
Металлические лестницы могут быть очень красивы и эффектны, особенно если проявить фантазиюБетонные
Вылить входные ступеньки из бетона – наиболее простой способ. Такая лестница обладает массой достоинств – она прочная, надежная, не подвержена воздействиям осадков. С годами, однако, бетон может трескаться и осыпаться, поэтому время от времени ступени придется ремонтировать.
Вот так солидно, респектабельно и величественно может выглядеть бетонная входная лестница в частный домКомбинированные
Такой вариант сегодня набирает все большую популярность. Особенностью данных конструкций является комбинирование разных материалов изготовления. К примеру, каркас можно сварить металлический, а обшивку сделать из натурального дерева.
Комбинированные конструкции очень популярны у застройщиков, такие лестницы позволяют сочетать в себе самые различные материалыЛибо еще один вариант – основание соорудить из бетона, а отделку произвести из керамической плитки либо камня.
Еще один вариант великолепной комбинированной системыИнструкция по строительству входной лестницы
Независимо от материала, формы и размера лестницы, существуют основные принципы сооружения входной лестницы.
При возведении входной конструкции следует отдавать предпочтение только качественному строительному материалу, способному выдерживать климатические нагрузкиОсновные принципы строительства
- Поскольку входная конструкция не защищена от неблагоприятных атмосферных влияний, значит материалы для ее сооружения необходимо выбирать исключительно высокого качества и, если необходимо, дополнительно их обрабатывать.
- Системы из дерева нужно пропитывать антисептиком и покрывать лаком.
- Лестницы из металла следует подвергнуть противокоррозийной обработке.
- Поверхность ступеней не должна быть скользкой.
- При построении чертежа следует соблюсти правильные пропорции, которые бы обеспечивали безопасность и комфорт передвижения.
Можно построить входную лестницу по очень простому проекту, но это не означает, что она будет менее красивой, чем сложные конструкцииСтандартные размеры
При проектировании входной лестницы необходимо руководствоваться такими общепринятыми стандартами:
- высота ступеней (подступенок) – в среднем 15 сантиметров;
- габариты проступи – не менее 27 см;
- угол уклона плоскости для отведения воды — 1,5 градуса;
- ширина площадки перед входом – не менее одного метра;
- угол подъема конструкции – 30 градусов.
Создавая проект будущей конструкции в основу берите общепринятые стандартные размеры для данный системОсновные этапы сооружения бетонной входной лестницы
Бетон – это тот материал, который как нельзя лучше подходит для строительства ступенек на входе в дом своими руками. Преимуществами такой конструкции является:
- износостойкойсть;
- прочность;
- неподверженность физическому влиянию;
- хорошая переносимость температурных нагрузок;
- дешевизна;
- проста в монтаже;
- пластичность;
- хорошая сочетаемость с другими отделочными материалами.
Бетонная входная лестница — оптимальный вариант для частного дома, который под силу для возведения даже новичкуПошаговый порядок возведения:
- Определяемся с типом системы, какой будет наша входная лестница – прямая, поворотная, одно-или многомаршевая.
Перед началом работ следует определиться с вариантом системы — для начинающего мастера лучше отдать предпочтение простой прямой маршевой конструкции - Проектируем конструкцию – определяем размеры лестницы, материал изготовления, готовим нужный инструмент.
Зарисовать лестницу можно самому, а можно попросить об этом более опытного строителя или чертежника - Выбираем основание конструкции – это может быть подушка из гравия, плита из железобетона и т.д.
Вот такой сварной металлический каркас может быть основной всей входной системы - Строительство – в свою очередь состоит из этапов:
- опалубка;
- арматура;
- заливка бетона.
Опалубка
Монтаж опалубки – один из самых важных шагов строительства. Ее необходимо возвести там, где будет размещаться вся конструкция.
Для достижения безупречно гладкой плоскости ступенек опалубку производят из тщательно обработанных досок, которые обильно смачивают водой во избежание впитывания влаги из бетона.
Производство опалубки — наиболее трудоемкий этап из всего процесса сооружения ступеней, ведущих к крыльцу домаАрматура
Теперь сооружаем каркас из арматуры. Для этого используют стальные прутья, которые увеличивают прочность конструкции и предотвращают бетон от растекания.
Арматура из стальной проволоки придает конструкции прочность и делает ее долговечнойЗаливка бетона
На завершающем этапе производят заливку бетонной смеси. Ходить по таким ступеням можно будет только после полного затвердевания бетона.
Самый последний шаг строительства входной лестницы — это заливка бетона
Входную лестницу на бетонной основе также можно обложить кирпичомНесмотря на то, что строительство бетонной входной лестницы по приведенной здесь инструкции можно осуществить и самостоятельно. Но, тем не менее, это очень трудоемкий процесс, требующий определенных навыков, знаний, терпения и уймы времени.
Гораздо проще заказать уже готовое качественное и стильное изделие в нашем специализированном магазине по выгодной стоимости.
Видео по теме: входная лестница в частный дом своими руками
lestnicymaster.ru
Лестницы на второй этаж в частном доме: секреты расчета и монтажа
Ссылка на статью успешно отправлена!
Отправим материал вам на e-mail
Современное развитие строительства частных домов все чаще прибегает к возведению двух-или трехэтажных домов. Поэтому постройка лестницы на второй этаж в частном доме служит важным пунктом. Конечно, вы можете обратиться к специалистам по ее возведению, но мы рекомендуем соорудить ее самостоятельно.

Лестница на второй этаж в частном доме
Содержание статьи
Элементы лестницы
Лестница, как сложный строительный элемент имеет свои особенности и обязательные составляющие элементы. Рассмотрим состав лестницы на второй этаж частного дома:
- Баллюстрада – это ограждение лестницы.
- Балясины – стойки-ограждения в виде небольших колонн, между ними не должна проходить голова ребенка, поэтому максимальное расстояние не превышает 15 см.
- Перила – ограждения.
- Столбы – опоры для балок и перекрытий.
- Больцы – металлические болты, которые нужны в качестве крепления ступеней к стенам.
- Марш – подъем из ступеней. Для него важен наклон, поскольку от него зависит безопасность лестницы.
- Тетива – опорная колонна для удержания лестницы в заданном положении и регулировки ее нагрузки. В зависимости от использования тетивы выделяют тетивную лестницу или косоурную. Тетивная использует пазы, а косоурная специальную форму для укладки ступеней.
- Подступенок – вертикальная часть ступени для опоры.
- Переходная площадка между маршами.
- Сама ступень, состоящая из проступи и подступенка.

Элементы лестницы
Лестницы на второй этаж в частном доме чаще всего делают из дерева, так как это экологически чистый материал, выглядящий стильно и привлекательно.
Видео: красивые лестницы на второй этаж
Особенности различных видов лестниц
Деревянная лестница на второй этаж частного дома может быть двух основных видов. Ниже изучим каждый из них.

Разнообразие типов лестниц
Винтовые лестницы
Такой тип обычно выбирают при ограниченном или малом пространстве для ее установки. Минимальный размер площадки для нее может ограничиваться полутора метрами. Для такого варианта есть ограничения – ей одновременно не могут пользоваться несколько человек – только один, а также затрудняется по ней поднимать громоздкие и объемные предметы.

Винтовая лестница
Она также отличается повышенной сложностью монтажа, а потому не имеет большой популярности для сбора ее самостоятельно. Для нее важно рассчитать надежность несущих и опорных стоек, а также важно соблюдать прочность конструкции.

Схема металлической винтовой лестницы

Монтаж деревянной винтовой лестницы
Маршевые лестницы
Другое дело – маршевые лестницы, которые считаются наиболее часто используемыми в частных домах. Они бывают с 1 маршем, а также 2, 3 или более – количество маршей зависит от потребности хозяина дома и наличия свободной площади.

Маршевая лестница
Кроме деления по количеству маршей такие лестницы делятся на прямые и поворотные, а по расположению делятся на пристенные или самостоятельные. Последние часто упираются в центр комнаты и могут быть позволены только владельцам с большой площадью дома.

Лестница с двумя маршами пристенного типа
Маршевую лестницу легко собрать самостоятельно, причем специалисты дают полезный совет о делении маршей при количестве ступеней больше десятка. Разделить ступени можно специальной площадкой, которая может поменять их дальнейшее направление, при этом в таком варианте используются специальные поворотные ступени, имеющие другое название трапециевидных или забежных.

Устройство маршевой лестницы
Лестницы с поворотом также различаются по направлению. Так, если она поворачивает на прямой угол, то ее называют четвертьоборотной, а при повороте вокруг своей оси – полуоборотной. На полный круг оборачивается винтовая лестница, которая не может уже считаться маршевой.

Поворотная лестница
Промежуточным вариантом круговой и маршевой лестницы считается комбинированный тип. Это самый сложный тип лестниц, так как требует много расчетов и сложных элементов. Ее встретить можно крайне редко.

Пример комбинированного типа
Статья по теме:
Технические требования к конструкции и правильный расчет параметров
Размеры лестницы на второй этаж частного дома рассчитываются исходя из наличия свободного места в доме. Оцените свои силы и возможности, сможете ли вы собрать тот или иной сложный тип конструкции без должного умения и опыта. Лучше выбрать простую лестницу, чем заново пересобирать ее несколько раз. К тому же, сложные лестницы требуют большого бюджета.

Размеры для расчета
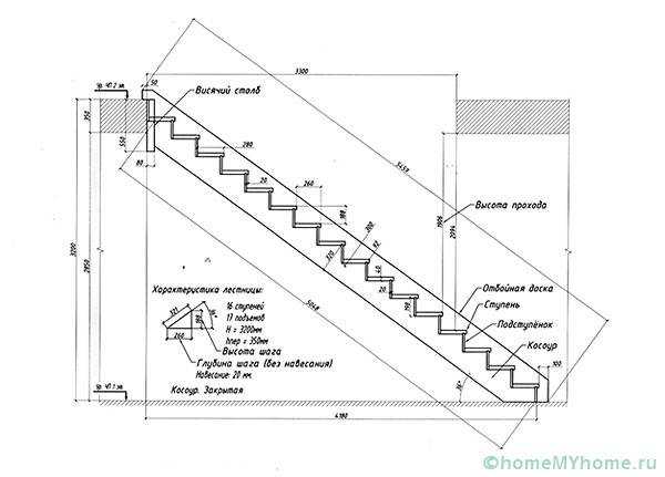
Чтобы верно собрать лестницу самостоятельно, используйте следующие полезные советы:
- Чертеж с замерами поможет вам определиться с местоположением лестницы и ее оптимальным вариантом.

Чертеж деревянной лестницы
- Удобная и безопасная лестница — превыше всего, поэтому ознакомьтесь с оптимальными параметрам наклона, поворота и размера ступеней.

Рекомендации по выбору угла наклона
- Ступени не должны быть меньше 20 см в ширину –такие минимальные размеры обеспечивают удобство шагания по ней.

Рекомендации по расчету ступеней
- Угол подъема максимум 45 градусов, иначе это будет неудобно.
- Учитывайте степень нагрузки и выбирайте подходящий материал. Для жилого дома подойдет нескользкое покрытие с нагрузкой до 350 кг на квадратный метр.

Удобные ступени – залог безопасности лестницы
- Если в доме есть дети, делайте лестницу максимально защищенной – следите за расстоянием между балками и увеличьте уровень ограждения.
- Оптимальная ширина пролетов составляет 1 метр плюс минус 12 см.
- Для расчета используйте метод подстановки на место лестницы прямоугольного треугольника с интересующими вас параметрами. Катет пола будет нужно поделить на 20 см (минимальная ширина ступени) и таким образом, получится количество ступеней. Высота же ступени рассчитывается по формуле высота подъема, деленная на 10-12 см. ширину вы можете определить сами.

Схема расчета оптимальных размеров лестницы
Рекомендации и советы по монтажу лестницы
Для изготовления лестницы вам пригодятся несколько полезных советов:
- Чертеж необязательно чертить самостоятельно, вы можете найти готовые в интернете и адаптировать под себя или взять уже готовый.

Готовый пример чертежа лестницы
- Если вы делаете детали самостоятельно, то используйте только древесину качественных пород дерева, сухую. Детали должны быть идеально заполированы и точно соответствовать параметрам чертежа или готовым лекалам.

Используем только качественную древесину
- Для косоуров используйте доски без оснований сучков толщиной до 5 см.
- Для поступей выберите закруглённые края и толщину доски 3 см.
- Балясины сложно сделать одинаковыми, поэтому вы сразу можете купить их набор в комплекте с креплениями.

Разнообразие готовых комплектов балясин
- Монтаж лестницы осуществляется в следующем порядке: косоуры, подступенники, поступи, балясины, перила и поручни.

Этапы возведения лестницы
- Готовая лестница нуждается в обработке специальными составами: полировка, антисептик, краска по желанию и лак.

Покрытие лестницы лаком
Итак, теперь вы знаете все нюансы и хитрости изготовления лестниц самостоятельно. Уверены, ваш дом существенно преобразится с внесением этого нужного и стильного элемента. Подведем итоги, для монтажа вам понадобится помнить:
- Элементы лестниц зависят от выбранного вами типа;
- Маршевая лестница проще в монтаже, чем винтовая, но требует большого пространства;
- Тщательное соблюдение параметров и размеров лестницы влияет на ее безопасность;
- Сборка лестницы идет снизу вверх.
Видео: монтаж лестницы

Экономьте время: отборные статьи каждую неделю по почте
homemyhome.ru
Входные лестницы в дом — Всё о лестницах
Входные лестницы в частных домах: виды и особенности конструкций
Для каждого частного дома входная лестница является своеобразной визитной карточкой. С её помощью можно придать фасаду здания особый внешний вид и подчеркнуть стилистику строения. Кроме того, для удобства использования необходимо позаботиться о соблюдении норм проектирования и устойчивости конструкции. Ключевые особенности свойственны каждой разновидности таких лестниц.
Особенности конструкции
Входные лестницы являются частью самого здания, а точнее, его крыльца. Особенностью таких конструкций является обязательное наличие хотя бы небольшой площадки в верхней части. Входная дверь не должна встречать препятствия при открывании, поэтому площадку необходимо разместить ниже уровня порога.
Изучая показатели для проектирования, входные ступени могут иметь небольшие отличия от внутренних. В первую очередь стоит отметить, что здесь используется исключительно маршевый тип лестниц. Количество ступеней в марше не может быть меньше трех: крайние фризовые, примыкающие к площадкам, и одна рядовая.

Для входных лестниц используются исключительно маршевые конструкции
Лучше делать нечетное количество ступеней, так удобнее передвигаться по лестнице.
Что касается параметров ступеней, их ширина устанавливается зачастую большей, чем внутри помещения. Оптимальными можно считать глубину проступи в 30 см, а высоту подступенка – 15-17 см. Естественно, это влияет на угол уклона и, если внутренние марши строятся под уклоном 30-40 градусов, здесь допускается 20-35.
Что касается формы ступеней, подъем в дом может быть оформлен в виде стандартного прямого марша или же иметь закругления и подобные элементы. Например, можно сделать радиальный подход к двери, когда нижние ступени имеют больший радиус от центральной точки. Если с одной стороны есть преграда, можно сделать полукруглые проступи. Эффектно смотрятся и обычные прямые ступени, увеличивающиеся по длине ближе к низу конструкции.

Закругленная форма ступеней придает лестнице весьма оригинальный и декоративный вид
Для декора и безопасности по бокам устанавливаются поручни. Если лестница имеет выход на просторное крыльцо, рекомендуется по его периметру также установить ограждения.
Касательно материалов, лучше подбирать оформление того же типа, что и для самого дома. При этом основание может быть изготовлено из одного материала, а дальнейшая отделка произведена в заданной проектом здания стилистике. В современном строительстве используются такие материалы, как:

Разновидности входных лестниц в зависимости от материала изготовления
Следует рассмотреть каждый из них более подробно.
Очень часто входную лестницу в небольших частных домах изготавливают именно из древесины. Преимуществом такого решения является доступность материала и его визуальная привлекательность. Особенно удачным такое решение является в том случае, если и сам дом изготовлен из дерева или же имеет подобные детали в оформлении экстерьера.
Для строительства чаще всего используют следующие породы:
Сосна является самой дешевой породой, но она отличается слабой устойчивостью к разрушению. Поэтому лучше оставить хвойные материалы для внутренней отделки и приобрести более прочный и долговечный материал.
Технология строительства такой лестницы предельно проста. Для начала в грунт устанавливаются обработанные пропиткой опорные балки. Для фиксации площадки прилегающие элементы монтируются к стене. Для укладки ступеней используют тетивы или вырезанные зубчатые косоуры. Способов крепления проступей существует множество: врезка, укладка на кобылки, задвижные и т. д. Для большей надежности используются гвозди.
Перед монтажом и в дальнейшем обязательно нужно обработать древесину пропиткой и вскрыть лаком или краской. Для декора можно использовать фигурные и резные элементы, особенно при установке ограждений.

Самым бюджетным и простым в изготовлении считается лестница из дерева
Особенно прочной и долговечной считается входная металлическая лестница. Для изготовления такой конструкции используются можно использовать следующие элементы:
- профилированные и круглые трубы;
- швеллеры и двутавры;
- уголки;
- решетки;
- перфорированные и рельефные листы;
- арматурные прутья;
- и т. д.
В работе чаще всего используют чугун и железо, а для изготовления более современных моделей – нержавеющую сталь.
Для обустройства подъема в дом, для начала необходимо заглубить в грунт опоры. Каркас выводится по всему периметру, а детали скрепляются между собой сваркой или болтами. Для установки ступеней, тетиву располагают по бокам или под проступями.
Сами ступени могут быть выполнены также из металла или же из других материалов, например, дерева или террасной доски. Для того чтобы предотвратить намерзание и скопление воды лучше использовать решетчатый материал и вывести небольшой уклон для каждой ступеньки. Лестница в дом может иметь кованые или литые вставки на ограждениях, что придает ей особую декоративную ценность.

Металлическая лестница отличается прочностью и износоустойчивостью
Для того чтобы обустроить дом монолитным входом лучшего материала, чем бетон не найти. Он активно используется именно для возведения наружных лестничных конструкций благодаря своим свойствам и долговечности. Из него можно отлить ступени любой формы и размеров. В состав смеси входят щебень, песок и цемент, а также различные пластификаторы и добавки, например, для придания изделию морозоустойчивости. Чтобы дополнительно укрепить конструкцию используется арматура. С её помощью можно закрепить лестницу и крылечную площадку к стене здания.
Чтобы дополнить дом бетонной лестницей, для начала необходимо подготовить фундамент. Он располагается в углублении в грунте, для подложки используют щебень и песок. Для отлива самих ступеней используют опалубку. Арматура перевязывается между собой и укладывается по всей площади ступеней и площадки. Смесь заливают внутрь и после разравнивания накрывают пленкой до высыхания. Для придания аккуратного вида требуется дальнейшая отделка. Для неё используют стяжку, древесину, плитку, камень и подобные материалы.

Для создания более сложных форм входной лестницы применяют бетон
Кирпичи и камень
Для кирпичного здания входная лестница может иметь ту же отделку поверх бетона или же быть полностью выполнена из кирпича. Принцип построения конструкции схож с бетонным вариантом. Для укрепления также используют арматуру, а основание представлено в виде бетонного фундамента. Если полностью выводить стенки и площадки из кирпича, на это уйдет немало сил и материалов.
Лучшим вариантом является комбинирование бетона и кирпича или камня. Из последних выводятся опорные колонны, ступени и декоративные элементы. Особенно эффектно выглядят лестницы из мрамора, гранита или песчаника.

Для кирпичного дома хорошо подойдет лестница выполненная из камня
Такой вход в дом отличается долговечностью и прочностью при условии соблюдения технологии кладки. Для декоративности поверхность можно отделать клинкером, камнем или плиточными материалами.
Входная лестничная конструкция должна органично сочетаться с отделкой самого здания, поэтому помимо выбора материала для основания обратите внимание и на декор. В этом случае, вы сможете создать целостную картину.
Входные лестницы: типы. Технология изготовления входного подъемного устройства из бетона
Непременная составляющая каждого здания – наружная лестница. Она является не только соединяющим звеном внешнего и внутреннего пространства, но и олицетворяет любое строение в целом, формируя его образ. Особого внимания заслуживают входные лестницы в частных домах, ведь именно при входе создается первое впечатление о владельце жилья.

Входная бетонная лестница, отделанная камнем и керамической плиткой.
В отличие от внутренних, наружные лестницы необходимы даже в одноэтажных строениях, поскольку всегда имеется хоть незначительный перепад уровней. Тем не менее, для удобного и безопасного передвижения человека однозначно требуется наличие подъемного устройства. Без него невозможно взобраться на высоту – так уж устроены люди. Поэтому при возведении дома необходимо помнить и о таком, очень важном, архитектурном атрибуте.
Основные качества, которыми должны обладать наружные лестницы
Помимо того, что наружному подъемному приспособлению надлежит органично сочетаться со стилем здания и составлять композиционное единство с ландшафтным дизайном, лестница на входе в дом должна обладать еще другими определенными качествами.

Фото небезопасного варианта подъемника (ступени скользкие и на конструкции отсутствуют поручни).
Так, обязательными свойствами для данной конструкции являются:
Все перечисленные выше пункты зависят от многих факторов:
- Материала, из которого изготовлена такая лестница.
- Насколько точно соблюдена технология возведения подъемного устройства.
- Правильно ли выбран тип конструкции.
- Точно ли соблюдены необходимые пропорции подъемника и так далее.
Лестницы для входа в дом подразделяются на множество типов. Перед их строительством, конечно же, необходимо сначала определиться в этом вопросе.

Закругленный бетонный подъемник, отделанный гранитом.
Также потребуется выбрать добротный материал, из которого она будет возведена. К этому нюансу необходимо подходить со всей серьезностью.
Обратите внимание! От выбранного материала напрямую будут зависеть и итоговая цена подъемника, и его соответствие стилю дома. К тому же, так как любое наружное строение, даже при наличии козырька, в большей степени подвержено негативному воздействию внешней среды, чем внутренние конструкции, то от прочностных качеств выбранного материала также будет зависеть и долговечность внешней лестницы.
Возведение входной лестницы
Сейчас современный рынок предлагает различные готовые входные подъемники, но, как правило, стоят они недешево. Поэтому, если финансы ограничены и есть навык в строительстве, то, при правильном подходе к делу, входная лестница в частный дом может быть возведена и своими руками. Это поможет значительно сэкономить семейный бюджет.

Фото многоугольного входного подъемника.
Типы входных лестниц
Как же не запутаться с типом конструкции и выбором материала? Прежде всего, следует отметить, что существуют основные материалы, из которых обычно возводят лестницы. Зачастую их сочетают между собой.
К ним относятся:
- бетон;
- металл;
- кирпич;
- реже дерево;
- натуральный или искусственный камень.
Наружные подъемные сооружения по конфигурации маршей подразделяются на такие основные типы, как:
- прямолинейные;
- криволинейные;
- комбинированные.
Также входная лестница может иметь в своем устройстве площадку (крыльцо), которая окружает ступени. Ее фигура зачастую обуславливается формой марша.
Поскольку описать процесс изготовления каждой конструкции здесь невозможно, то на примере такого самого оптимального и широко применяемого варианта, как одномаршевая прямая лестница из бетона, рассмотрим поэтапно всю процедуру возведения. Итак, как сделать бетонный подъемник своими руками?
Технология изготовления входного подъемного устройства из бетона
Всю процедуру строительства бетонной входной лестницы можно условно поделить на такие этапы как:
- Расчет параметров подъемника.
- Составление чертежа.
- Закладка основания для лестницы.
- Сборка опалубки.
- Установка арматурного каркаса.
- Заливка конструкции бетоном.
- Установка перил (при необходимости).
- Финишная отделка входного подъемного устройства различными материалами.

Устройство наружной лестницы.
При возведении входного строения следует придерживаться общепринятых стандартов:
- высота лестничных подступенок – от 15 до 18 см;
- глубина проступи – от 27 до 32 см;
- ширина площадки – не менее 1 м;
- угол наклона лестницы – 30 градусов.

Ступеньки для лестницы – форма, материал, особенности конструкции
Фото устройства опалубки для бетонной входной лестницы, которая состоит из:
- 1 – брусков, при помощи которых скрепляется опалубка;
- 2 – брусков для скрепления листов, которые формируют ступени;
- 3 – досок, формирующих ступени;
- 4 – торцевой опалубки.
Пошаговая инструкция строительства бетонной лестницы включает в себя следующие шаги:
- На первом этапе изготавливается площадка под лестницу. Для этого сначала необходимо уложить подушку из щебня и песка на всю площадь ее расположения, предварительно сняв слой почвы где-то на 2-3 см. Затем крыльцо заливается бетонным раствором. Принцип такой же, как и для изготовления бетонной стяжки. Площадка будет служить основанием всей конструкции. При этом обязательно следует следить, чтобы она получилась строго горизонтальной.
- Далее, после высыхания раствора, чтобы входная лестница в дом получилась ровная и красивая, нужно соорудить жесткую и прочную опалубку. Для этого применяется водостойкая фанера сечением около 20 мм, из которой удобно изготавливать криволинейные детали лестниц. Также понадобятся и ровные полуобрезные или обрезные доски толщиной примерно 30 мм. Их используют для боковых частей опалубки и придания формы ступеням. Все заготовки для опалубки нарезаются в соответствии с размерами чертежа. Части данной конструкции скрепляются уголками из металла или брусками дерева, которые следует прикручивать саморезами. Из них же можно сделать и подпорки. При этом следует учитывать, что они должны быть прочными, так как бетон имеет большой вес, и основная нагрузка после заливки раствора будет приходиться именно на них. Также понадобится установить и стойки. Их можно усилить с помощью перемычек из досок, что увеличит жесткость сооружения. Следует обратить внимание, что все части опалубки должны плотно прилегать друг к другу, так как через образовавшиеся щели раствор может вытекать.
- После изготовления опалубки, можно приступать к армированию. Для этого стальные прутки следует укладывать вдоль марша подъемника, а также несущих граней опалубки. Их удобно скреплять между собой поперечными связями при помощи проволоки. Для того чтобы предотвратить крошение передней кромки и ступеней подъемника, такие места также следует усилить поперечно уложенной арматурой.
- Заливку бетонного раствора следует начинать с первой нижней ступени. В состав смеси обязательно должен быть включен мелкозернистый щебень (10-20 мм). От того, насколько плотно уляжется раствор, будет зависеть прочность консрукции в целом, поэтому его уплотнение лучше всего производить при помощи специального строительного вибратора. Смесь должна высыхать постепенно и, в связи с этим, после заливки лестницу следует накрыть полиэтиленовой пленкой. Это предотвратит образование микротрещин в сооружении. Опалубку и подпорки следует снимать не раньше, чем через 3 недели после проведения работ. Перед заливкой раствора необходимо не забыть установить металлические столбцы, куда в дальнейшем будут монтироваться перила.
- Установка перил и финишная отделка лестницы происходит на последнем этапе. Поручни могут приобретаться как в готовом изделии, так и изготавливаться своими руками. Данная бетонная лестница может быть облицована керамической плиткой, деревом, камнем и так далее. Единственное, выбирая отделочный материал, следует помнить, что в зимнее или дождливое время года ступени должны быть безопасными. Предпочтение нужно отдавать поверхностям с шероховатой и противоскользящей структурой.

Процесс заливки бетона в опалубку.
Обратите внимание! Компоненты раствора для входного подъемника должны быть тщательно перемешаны. Для его приготовления используются следующие пропорции: 1 часть цемента, 4 доли щебня, 2 части песка. Воды требуется ровно столько, сколько нужно для того, чтобы смесь получилась консистенции густой сметаны.
Заключение

Готовая лестница без финишной отделки.
ОСамостоятельный расчет ступеней лестницы» width=»450″ height=»334″ frameborder=»0″ allowfullscreen=»allowfullscreen»>
В заключение следует отметить, что бетонные входные подъемные устройства, сделанные с соблюдением всех технически правил, служат долгий срок и являются самыми надежными конструкциями. В представленном видео в этой статье вы найдете дополнительную информацию по данной теме (узнайте также как осуществить самостоятельный расчет ступеней лестницы ).
Делам входную лестницу в частный дом: требования и советы
Входная лестница — это очень распорстраненный аттрибут частного дома. Она может быть состояить из нескольких ступенек или быть высокой, в любом случае, она выполнять важные функции, в том числе, декоративные. По виду фасада здания, по входу в дом можно уже многое сказать о хозяине помещения, его достатке и вкусе.
Какие варианты лестниц могут быть для частного дома? Какие технические требования существуют для таких строений? Возможен ли вариант установки готовой конструкции? Какими навыками нужно обладать, чтобы построить такую лестницу самостоятельно, собственными руками? На все эти вопросы вы сможете найти ответы в этой статье.
Виды входных лестниц. Фото
Перед началом строительства и проектировочных работ необходимо определиться с видом входной лестницы, чтобы она не только выполняла своё прямое назначение, но и гармонировала с общим строением, дополняла его. Различают виды входных изделий по материалу, из которого они изготовлены, и по конфигурации. Немаловажным фактором в определении вида конструкции является и её размер. И конечно же, очень важно учитывать индивидуальные особенности дома. Наглядным примером будут представленные фото.








По своей форме входные конструкции могут быть:
- винтовыми;
- прямолинейными;
- поворотными;
- с ровными, закруглёнными углами;
- с наличием лестничной площадки и без неё;
- с крыльцом .
Неплохо себя зарекомендовали комбинированные решения, но здесь придётся потрудиться с технической документацией и совмещением разных видов конструкции. Конечно, цена такой лестницы будет немного выше.
Основные технические требования к входным лестницам, особенности расположения
Основным и важным правилом при конструировании входного изделия является расположение. Нежелательно возводить лестницу впритык к дверному порогу. Многие профессионалы акцентируют внимание на этом моменте, считая его существенным для всей конструкции и дальнейшей её эксплуатации.- Установка лестницы сразу возле входа имеет неудобства и для самих жильцов. Так как входная дверь открывается наружу, то необходимо спуститься на несколько ступенек вниз. чтобы дверь свободно распахнулась, тоже происходит и при закрытии.
- Особое внимание строители акцентируют на безопасности конструкции, так как многие из них становятся просто непроходимыми в зимнее время. Выбрав неправильно материал для строительства, вы можете зимой получить просто горку, по которой придётся спускаться и подниматься только с ледоходами на ногах.
- Не последним фактом при выборе конструкции и материала является и влияние погодных условий на сам материал. Стоит помнить, что конструкция находится под открытым небом, поэтому постоянно подвергается перепадам температуры, влаге, снегу и ветру.
Технические требования к наружным лестницам
Начиная строительство наружной лестницы, стоит помнить, что вы возводите архитектурное сооружение, которое должно отвечать определенным техническим нормам, выполнение которых важно, прежде всего, для удобства и безопасности. Такое приспособление должно отвечать некоторым требованиям:
Крыльцо может возводиться одновременно со всем зданием. а может пристраиваться после выполнения всех основных работ по строительству дома.- В зависимости от того, с какой стороны будет располагаться вход, существуют определенные правила выбора размеров лестницы. Так, с северной стороны никогда не пристраивают большую конструкцию, а с южной, наоборот, нередко сооружают огромную террасу с широкой массивной конструкцией. В основном, входные конструкции располагают с тыльной стороны дома, при этом придерживаются единого ландшафтного и архитектурного стиля;
- Для того чтобы вся конструкция входной лестницы была устойчивой, для неё сооружают отдельный фундамент. при этом часть конструкции должна обязательно упираться в стену здания. Если для входа достаточно нескольких ступенек, то можно выбрать в качестве строительного материала бетон, и соорудить массивные ступени;
- Стоит отметить, что наличие фундамента для входной лестницы необходимо, чтобы избежать взаимной усадки конструкции здания и лестницы. Не стоит соединять фасад и лестницу между собой анкерами, так как именно усадка начнёт разрушать либо стену дома, либо конструкцию со ступенями;
- К размерам и габаритам входной лестницы выдвигаются общие требования, которые позволят комфортно и свободно передвигаться: нормальная ширина ступеней – 80 сантиметров, наклон ступеней для стока воды – 2, проступь – 29–33 см, подступенек – 17 см. Не стоит забывать, что выбранная конструкция должна свободно пропускать крупногабаритные предметы, в случае надобности заноса в дом.
Основные материалы для изготовления входных лестниц
Входные конструкции к дому можно заказать уже готовые, но если вы имеете опыт работы с одним из материалов, их достаточно просто возвести самому. Самыми востребованными материалами считаются:

Этот вид встречается чаще всех других из-за своих показателей прочности и минимального воздействия на него погодных условий. Для того чтобы изготовить лестницу, необходимо предварительно сварить основу из арматуры. это помогает увеличить прочность сооружения и не даёт разрушаться конструкции. Бетонные изделия могут изготавливаться как отдельные части, так и собираться в единую конструкцию, или быть единым, монолитным комплексом. Сегодня самыми востребованными являются монолитные конструкции, они имеют самую максимальную прочность.
Для самостоятельного сооружения бетонной лестницы необходимо подготовить сварную армированную основу, опалубку из деревянных досок. куда в дальнейшем и будет заливаться бетон. Для опалубки не нужно покупать дорогих досок высокого качества, можно использовать даже обычную фанеру. Когда будет заливаться бетон, готовая опалубка должна предварительно смачиваться водой. Это поможет избежать вытягиванию деревом влаги из самого бетона и не будет вызывать его хрупкости.
Залитый бетон в опалубку должен простоять несколько суток, до полного его застывания. Снятие опалубки должно быть постепенным и аккуратным, чтобы не нарушить общую конструкцию. Совет специалиста! Когда в бетонной лестнице установлена армированная основа, вы можете быть уверенными в её прочности, устойчивости к погодным воздействиям. В качестве отделочного материала может использоваться большое количество материалов, которые представлены на современном строительном рынке.
Лестница из металла
Такую конструкцию собрать самостоятельно легче всего, достаточно иметь сварочный аппарат, и уметь работать с ним. Сегодня некоторые фирмы предлагают металлические лестницы, состоящие из отдельных элементов, которые можно собрать самостоятельно. Чтобы изготовить лестницу из металла самостоятельно, необходимо приобрести железный профиль, уголки и швеллера. Для перил будет необходима арматура.
Как отмечают специалисты, металлические лестницы не являются безопасными при использовании в зимнее время, а если в качестве ступеней будут установлены гладкие металлические листы. то идти по ним будет, вообще, невозможно. Примером могут служить представленные фото. Совет специалиста. Если вы решили, что вам нужна входная конструкция из металла, то лучше для ступеней использовать перфорированные листы, и после установки, нужно обрабатывать конструкцию антикоррозийными составами в течение первых трёх лет, с частотой – 2 раза в год.
Деревянные лестницы
Такие лестницы встретить можно крайне редко, но если дом сделать из дерева, то изделие тоже может быть из подобного материала. Для того чтобы деревянная конструкция прослужила длительное время, необходимо правильно выбрать материал для её изготовления. Для деревянных маршей лучше устанавливать бетонные опоры, которые в народе называются быками. Если вы установите лестницу на почву, то она начнёт очень быстро гнить и за пять лет станет непригодна к эксплуатации.
Основным преимуществом, по которому многие отдают предпочтение деревянным конструкциям, остаётся их привлекательный вид. Конструкции из дерева всегда отличаются своим богатством и роскошью. Наглядным примером станут представленные фото с образцами лестниц из дерева. Для установки и самостоятельного изготовления деревянной лестницы. не нужны специальные инструменты, достаточно иметь шуруповёрт, молоток, саморезы, гвозди и пилу.
Совет специалиста! Деревянные конструкции нуждаются в постоянном уходе и обработке антисептиками против гниения, и порчи насекомыми. Входные лестницы в дом должны быть постоянно в отличной «форме». Эти составы продаются в любом строительном магазине.
Ошибочно думать, что изготовить красивую, функциональную лестницу своими руками очень трудно. Следует лишь внимательно просмотреть инструкции, где входные лестницы в частных домах показаны очень грамотно и доступно. Если вы профессионально подойдёте к выбору вида конструкции, материала для её изготовления, то сможете не только создать свой шедевр собственными руками, но и сэкономить значительную сумму семейного бюджета.
Барсуков Виктор Иванович
Источники: http://vseolestnicah.ru/vidy-lestnic/vhodnye-lestnicy-v-dom.html, http://sdelai-lestnicu.ru/osobennosty/336-vhodnye-lestnicy, http://lestnica.guru/krylco-i-vhod/delam-vhodnuyu-lestnicu-v-chastnyy-dom-trebovaniya-i-sovety.html
lestnica-mpl.ru
Лестница на второй этаж своими руками
В последнее время строительство загородного дома очень часто не ограничивается одним этажом. С целью расширения пространства возводится второй или же утепляется и приводится в пригодное для комфортного проживания состояние мансардное помещение. А это значит, что без лестницы в интерьере первого этажа не обойтись.

Лестница на второй этаж своими руками
Лестница на второй этаж своими руками вполне может быть собрана из готового комплекта, который можно приобрести в компаниях, профильно занимающихся разработкой и изготовлением этого интерьерного функционального элемента. В предлагаемых каталогах можно подобрать лестницу, которая идеально впишется в обстановку обоих этажей, и будет удобной и безопасной для подъема и спуска для всех членов семьи.
Можно попробовать и самостоятельно построить лестницу, но в этом случае необходимо произвести точный расчет, так как при непродуманности конструкции привычный для всех элемент дома вполне может стать травмоопасным «тренажёром».
Кроме этого, нужно определиться в том, какую роль в интерьере будет играть лестница. Она может быть совсем незаметной, и не являться декоративным украшением комнаты, а может стать центром композиции, вокруг которого будет строить все оформление помещения.
Поэтому, чтобы выбрать подходящий экземпляр, лучше хотя бы схематично нарисовать лестницу, которую хотелось бы видеть в своем доме, а можно найти уже готовый вариант и адаптировать его для определенной комнаты.
Перед тем как выбирать модель лестницы, нужно обязательно узнать, как она устроена, и как рассчитать ее правильные параметры.
Содержание статьи
Основные составляющие элементы лестницы
Конструкция лестницы имеет немало составляющих, некоторые из них являются обязательным, другие же могут не входить в устройства некоторых видов этого сооружения.

Основные конструктивные элементы лестницы
Итак, лестница не может обойтись без ступеней и опор, которые их поддерживают – это главные элементы самых простых конструкций межэтажных лестниц.
- Сама ступенька состоит из двух частей – вертикальной и горизонтальной. Первая из них называется подступенка, а вторая – поступь. Подступенка является опорой для поступи, но иногда обходятся и без нее.
- Опоры могут быть двух типов:
— тетива – это балка, поддерживающая ступени с их торцов;

Поступи и тетивы
— косоур – балка, поддерживающая ступени снизу.
- Перила – это тоже важный элемент лестницы, хотя присутствует не на всех ее видах. Но если в доме есть дети или пожилые люди, то без них никак не обойтись.
- Балясины – вертикально устанавливаемые опоры для перил, которые чаще всего становятся не только функциональной деталью лестницы, но и ее декоративным украшением. Этот элемент может быть выполнен из разных материалов и иметь различные формы.
Так как существуют разные виды лестниц, каждая из них может иметь детали, которые необходимы именно для конкретной конструкции.
- Стойка – этот элемент используют для устройства винтовой лестницы. На стойку с определенным шагом закрепляются ступени особой формы, которые образуют спираль, поднимающуюся от первого до второго этажа.

Лестница на больцах
- Больцы – это специальные болты, которые тоже являются поддерживающими ступени элементами, они крепятся в стене и непосредственно на сами ступени. Они применяются не для всех, а только для отдельных видов лестниц.
Виды лестниц
Узнав, из каких элементов состоят лестницы, нужно подробнее разобраться, как выглядит каждый из видов этих конструкций, устанавливаемых между этажами.
Маршевая лестница
Этот вид лестницы — популярный для частного дома любого типа. Она состоит из одного или нескольких прямых маршей, снабженных ровно расположенными ступенями. По ней удобно спускаться и подниматься, но недостаток этой модели заключается в том, что для нее необходимо иметь достаточно много места в помещении.

Самые распространенные — маршевые лестницы
Если лестница состоит из нескольких маршей, то каждый из них должен иметь не менее 3 ÷ 4 и не более 15 ступенек. Несоблюдение этого стандарта может привести к не комфортности подъема по лестнице. Обычно количество ступеней в каждом марше составляет 8 ÷ 11 штук, а между маршами устанавливаются специальные площадки. Их размеры кратны средней длине шага.
- Маршевые лестницы могут быть закрытыми и открытыми. Первые из них имеют в конструкции ступеней подступенники, а вторые — устраиваются без них. Открытый вариант удобен в тех случаях, когда ступени имеют недостаточную ширину.
- Маршевые лестницы могут иметь ступеньки, закрепленные на косоурах или на тетивах. Для этих деталей выбираются доски, имеющие толщину не менее 45 ÷50, а лучше – даже 60 ÷ 70 мм.
- Если прямая лестница без поворотов имеет больше 8—9 ступенек, то для прочности рекомендовано также разделить ее площадкой.
- В случае, когда лестница построена с небольшим поворотом, ее называют поворотной, и иногда на этом участке вместо площадки устраивают ступени, которые называют забежными.

Забежные ступени четверть оборотной лестницы
- Кроме приведенных выше типов, маршевые лестницы могут быть:
— четвертьоборотные – угол которых при повороте составляет 90 градусов, и устраиваются они, в основном, на стыке двух стен;
— полуоборотные – поворот их имеет угол в 180 градусов;
— круговые модели – марши последовательно образуют поворот на 360 градусов.
Конструкция лестницы на больцах
Название этих лестниц на больцах произошло от немецкого слова «вolzen», что означает болт. Таким образом, это лестница, закрепленная на болтах. На самом деле – это крепежная деталь в виде штыря, имеющего на своих концах резьбу. С помощью их ступени и ограждения скрепляются между собой и монтируются в стену. Благодаря этим приспособлениям конструкция смотрится легкой и воздушной. Способствует этому и отсутствие подступенников.

Элегантная лестница на больцах
Кроме этого, подобная модель может быть растянутой на определенном участке стены, а может выглядеть достаточно компактно. Несмотря на кажущуюся лёгкость, конструкция надежна и прочна, она способна выдерживать сотни килограммов, поэтому лестницы на больцах становятся все более популярными.

Несмотря на «воздушный» вид, лестница на больцах является очень надежной
Естественно, такая конструкция не может располагаться посередине комнаты, так как она обязательно должна крепиться к стене, главное условие для монтажа – это ее прочность материала, из которого она возведена.
Лестницу на больцах достаточно сложно рассчитать самостоятельно, но ее можно приобрести в комплекте или сделать заказ профессионалам на ее изготовление с привязкой к конкретным условиям дома.
Видео: монтаж деревянной лестницы на больцах
Монтаж этой конструкции достаточно сложен, и доверить его лучше квалифицированным мастерам, которые смогут оценить возможность ее установки. Поэтому, прежде чем приобретать комплект, лучше всего сначала посоветоваться со специалистами.
Винтовая межэтажная лестница
Эта конструкция более сложна в монтаже, но имеет преимущество в том, что она занимает самую минимальную площадь из всех существующих вариантов, поэтому идеально подходят для помещений с небольшой площадью. Кроме этого, такую лестницу можно установить в любом удобном месте комнаты и, при желании, сделать ее центром композиции интерьера, так как конструкция имеет достаточно эстетичный вид.

Винтовая лестница — экономит пространство, но не всегда удобна для переноски габаритных предметов
Винтовые варианты лестниц могут быть разных видов, но для двухэтажного дома лучше всего подойдет модель, состоящая их стойки и клинообразных ступеней. Для стойки выбирают металлическую трубу или деревянную опору.

Стойка и ступени винтовой лестницы
- Сама стойка закрепляется к полу первого этажа и в межэтажном или чердачном перекрытии.
- На нее узкой стороной закрепляются ступени и поворачиваются таким образом, чтобы общая конструкция напоминала спираль.
- На широкую сторону ступенек устанавливаются балясины, верхняя часть которых закрепляются в поручне, повторяющим спиралеобразное направление всей конструкции.
Видео: монтаж винтовой лестницы
Неудобным в такой модели является то обстоятельство, что по ней сложно будет поднять или спустить вниз какой-то массивный предмет мебели. Кроме этого, выбирая для установки такую модель, нужно знать, что чем меньше для нее проем в межэтажном перекрытии, тем лестница будет круче и неудобнее.
Рассчитать винтовую конструкцию несложно. Для этого определяется участок в комнате, где она будет установлена, вычисляется его центр – это будет место установки стойки. Далее, вымеряется расстояние от стойки до границы – это будет ширина пролета, т.е. длина ступеней.
Для комфортного хождения по такой лестнице, размер середины ступени должен быть не менее 200 мм, а самая широкая часть должна составлять не более 400 ÷ 420 мм.
Такую конструкцию вполне можно изготовить и собрать самостоятельно, при наличии навыков работы с деревом, и умении рассчитывать нагрузки на выбранный материал. Однако, если нет уверенности в своих силах, то лучше доверить работу специалисту, так как неправильно устроенная конструкция весьма травмоопасна.
Требования к конструкции лестниц
Прежде чем приступать к работе, необходимо узнать предъявляемые к конструкции лестницы требования.

Лестница должна отвечать определенным требованиям безопасности
Безопасность – это, пожалуй, самое важное условие. Чтобы оно было в полной мере выполнено, очень важно точно просчитать все параметры:
— просчитывается угол уклона, ширина и высота ступеней, способ крепления первой и последней из них;
— если лестница не расположена между двух стен, ограждение установить необходимо, и высота его должна быть не менее 800 ÷ 850 мм;
— если в доме есть маленькие дети, балясины, поддерживающие поручень ограждения, не должны быть расположены друг от друга дальше, чем на 100 ÷ 120 мм;
— ширина ступенек должна составлять 200 ÷ 300 мм;
— лестница должна выдерживать достаточно большие нагрузки — для жилых домов они составляют 300 ÷ 350 кг/м²;
— нельзя чтобы ступени были скользкими – обязательно продумывается фактура их внешнего покрытия;
— вся конструкция должна быть надежно и жестко закреплена между этажами;
— нежелательно устанавливать конструкцию на угол подъема больше 45 градусов;
— ширину пролетов нельзя делать меньше 850 мм, оптимальный же вариант – это 1000 ÷ 1200 мм;
— лестница будет менее травмоопасной, если ее разделить площадками на две или три части;
— крепления для элементов конструкции должны быть изготовлены из качественного материала, поэтому на них нельзя экономить;
— если деревянные детали обрабатываются самостоятельно, то нужно довести их до идеальной ровности и соответствия размерам, установленных чертежом или лекалами.
Видео: ошибки при проектировании и строительстве лестниц
Расчет параметров лестницы и изготовление деталей
Так как для самостоятельного изготовления и установки маршевая конструкция со ступенями, уложенными на косоур — самая доступная, а также удобная и безопасная в эксплуатации, то и стоит рассмотреть именно ее.
Первое, что нужно сделать — это произвести расчет места, количества и размеров ступенек, а также ширины пролета лестницы.
Расчет параметров лестницы
Расчет конструкции маршевой лестницы производится следующим образом:
- Берутся за основу высота помещения и длина всей или части стены – того места, которое отведено для установки лестницы. Уменьшив эти величины в масштабе, вычерчивают прямоугольный треугольник, в котором гипотенузой будет сама лестница, а катетами — высота подъема и пол.
Идеальным для установки лестницы считается угол в 45 градусов, но он может быть и изменен, в зависимости от желания владельца дома и от площади помещения.
- Комфортная ширина поступи должна быть не менее 200 мм, поэтому катет пола, опираясь на натуральную его длину, делится на эту величину. Полученное количество ступеней размечается на чертеже.
- Высота подступенников, удобная для передвижения, не должна превышать 100 ÷ 120 мм. Чтобы высчитать их, нужно высоту общего подъема разделить на выбранную высоту подступенников и также перенести на чертеж.
- Таким образом, можно высчитать размеры косоура для укладки ступеней.
- Ширина лестницы будет зависеть от предпочтения жильцов и от размера комнаты.
Видео: пример расчета маршевой межэтажной лестницы
Изготовление деталей лестницы
Чтобы правильно изготовить детали, нужно точно перенести на материал размеры со сделанного чертежа, и подобрать качественную хорошо просушенную древесину.

Взаимная подгонка деталей лестницы
- Самое сложное — идеально ровно выпилить косоуры, так как от этого будет зависеть надежность и прочность, а также эстетичность конструкции. Для этих несущих элементов доску выбирают цельную без трещин и многочисленных крупных сучков, толщиной не менее 45 ÷ 50 мм.
- Полотна поступей могут иметь ширину на 1,5—2 см больше, чем место, предусмотренное для них на косоурах, плюс толщина подступенников. Поступи должны быть идеально ровными с закругленными аккуратными краями, и это тоже очень важно учесть. Для них выбирается доска толщиной в 30 ÷ 35 мм.
- Если планировалось сделать лестницу закрытой, с подступенниками, то они тоже должны быть сделаны аккуратно. Для этих элементов не нужно брать доску большой толщины, так как в основном вся нагрузка будет выпадать на косоуры, а подступенники сыграют поддерживающую конструкцию ступеньки роль. Достаточно толщины в 15 ÷ 20 мм.

Комплект готовых балясин
- Балясины и поручни лучше будет приобрести в готовом виде вместе с креплениями. Если в доме есть дети, то, в целях безопасности, на каждую ступеньку стоит установить по две балясины. В случае, когда дети уже выросли, то достаточно по одному поддерживающему поручень элементу.
Цены на различные виды элементов лестниц
Элементы лестниц
Монтаж лестницы
Монтаж лестницы — самый ответственный момент после изготовления всех элементов конструкции, и к нему нужно подойти с максимальной ответственностью.

Установка косоуров
- Первыми устанавливают косоуры по заранее установленным меткам. На полу они закрепляются на закрепленный в нужном месте опорный брус, а в верхней части их устанавливают в вырезанные зазоры в балке перекрытия. Иногда для закрепления верхней части косоуров используют металлические опоры, установленные на перекрывающей потолок балке. Креплениями для этих несущих элементов выступают анкерные болты.
Чтобы детали были установлены идеально ровно, их в процессе монтажа постоянно выверяют по отвесу и строительному уровню.
- Если предусмотрены подступенники, то они прикручиваются перед тем, как положить полотно поступей.
- Затем сверху косоуров и подступенников сверху саморезами закрепляются панели поступей.

Лестница может быть собрана без подступенников, по открытому типу
Крепление подступенников и поступей происходит в комплексе, и идет снизу-вверх.

Монтаж подступенников
- Затем, когда ступени будут готовы, можно переходить к установке балясин.
С обоих сторон, то есть на полу первого этажа и наверху лестницы, устанавливают опорные стойки, которые станут границей для общей конструкции поручня (перил). Они также будут играть и поддерживающую, и декоративную роль.

Способы крепление стоек и балясин
Балясины могут быть разного размера, и изготовлены из различных материалов, поэтому и крепиться они могут по-разному. Некоторые из них просто устанавливаются в высверленные отверстия в ступенях и поручнях, другие прикручиваются саморезами, а места крепления закрываются декоративными заглушками.
- Установив балясины, их накрывают сверху поручнями, которые закрепляются на опорных крайних стойках. При необходимости, в середине лестницы можно установить еще одну опорную стойку.
- Если стоек устанавливается три или даже четыре, то вместо балясин надежным ограждением могут послужить две или три ровные доски (планки), закрепленные параллельно ходу лестницы.
- Когда вся конструкция будет собрана, можно переходить к обработке поверхностей с помощью шлифмашинки и наждачной бумаги. Подготовка проводится перед нанесением защитных и декоративных лакокрасочных покрытий.
- Первый слой, который наносится на дерево — это антисептические составы. Они защитят древесину от гниения, появления плесени или грибка, от домашних насекомых. После этого конструкции дают полностью просохнуть.

Деревянные детали лестницы следует покрыть лаком
- Далее лестница может быть в несколько слоев покрыта лаком (желательно — на водной основе) горячим воском или краской.
- Если нужно затемнить древесину, ее предварительно покрывают морилкой или другими тонирующими составами, а потом, после высыхания, сверху них накладывают лаковое покрытие.
После просыхания лакокрасочного покрытия, лестница будет готова с эксплуатации.
Фото-инструкция создания лестницы из дерева

Шаг 1 — чертеж будущей конструкции

Шаг 2

Шаг 3

Шаг 4

Шаг 6

Шаг 7

Видео: еще один интересный вариант монтажа лестницы на второй этаж
Если в доме необходимо установить лестницу, нужно тщательно просчитать каждый шаг своей работы и подойти к ней со всей ответственностью и аккуратностью.
stroyday.ru



Перед началом работ следует определиться с вариантом системы — для начинающего мастера лучше отдать предпочтение простой прямой маршевой конструкции
Зарисовать лестницу можно самому, а можно попросить об этом более опытного строителя или чертежника
Вот такой сварной металлический каркас может быть основной всей входной системы
Основным и важным правилом при конструировании входного изделия является расположение. Нежелательно возводить лестницу впритык к дверному порогу. Многие профессионалы акцентируют внимание на этом моменте, считая его существенным для всей конструкции и дальнейшей её эксплуатации.
Крыльцо может возводиться одновременно со всем зданием. а может пристраиваться после выполнения всех основных работ по строительству дома.