Красивые дома из клееного бруса – Проекты домов из клееного бруса — Сибирский ЛЕС
Красивые дома из клееного бруса + фото
Технология строительства домов из клееного бруса пришла к нам из Финляндии. Такой материал идеально подходил для их сурового и переменчивого климата. Дерево всегда считалось уникальным строительным материалом, что отличается своими характеристиками.

А благодаря технологии обработки дерева, свойства и характеристики увеличили в несколько раз. Однако, дома из клееного бруса отличаются не только долговечностью, теплом и практичностью. Они к тому же очень красивые.

Такие домики могут порадовать каждого, ведь благородный вид дерева не оставит равнодушным никого. Давайте больше узнаем об этих постройках, а также рассмотрим некоторые проекты домов, которые можно воплотить в жизнь.
Технология возведения
Клееный брус имеет массу преимуществ, однако, многие ценят его за минимальную усадку при строительстве. Что это значит? Дом из клееного бруса будет полностью готов к заселению намного раньше, так как не нужно ждать целый год, пока строение даст усадку. Усадка зависит от количества влаги в древесине. И если в обычном срубе или оцилиндрованный бревне ее много, то клееный брус на этапе производства проходит специальную сушку.

Возведение такого дома происходит в несколько этапов:
- Для начала устраивают ленточный фундамент (если дом небольшой, то делают свайный или столбчатый). Для этого по периметру роется траншея, на дно насыпается гравий и песок, высотой в 10–15 см.
- После чего выставляют опалубку, используя деревянные щиты или фанеру. Опалубку укрепляют, чтобы бетон не разрушил конструкцию. В дополнении стенки изнутри можно обтянуть пленкой. Так, снять опалубку после заливки будет проще.
- Фундамент усиливают прутьями арматуры, делая из них сетку. Она помещается вовнутрь опалубки. На этом этапе обустраивают канализационные стоки и подводку водоснабжения. Остается только приготовить бетон, залить фундамент и выровнять поверхность. Сохнуть он будет месяц.
- Перед тем как возводить стены из клееного бруса, на фундамент укладывают слой рубероида. Для того его смазывают битумной мастикой. Это гидроизоляционный слой, который убережет дом от гниения.
- Наконец, настает время укладывать первые венцы дома из бруса. Балки соединяются друг с другом посредством нагелей. Собирать дом из клееного бруса легко, так как все детали уже готовы, поэтому остается только установить их на свои места.
- В конце делается крыша. Ваш дом построен. Самое главное то, что за счет идеальных форм клееного бруса, щели в стенах будут отсутствовать. А это значит, что зимний дом из клееного бруса будет очень теплый.
За счет простоты монтажа, минимальной усадке и отличных показателей сбережения тепла, многие так полюбили дома из клееного бруса.

Совет! Строительство обойдется вам недешево, так как материал сам по себе довольно дорогостоящий. Но, качество материала остается на высшем уровне.
А вот что еще так нравится потребителям, так это возможность создать дом из бруса по своему желанию. Так как материал легко поддается обработке, можно возводить разнообразные красивые дома, которые будут радовать и вас и окружающих.
Проектирование красивых домов из клееного бруса
С уверенностью можно сказать, что основным этапом строительства является именно проектирование. Ведь без него построить дом не удастся. Да и благодаря планированию можно получить всевозможные формы и разнообразие архитектуры строения.

Дальше мы рассмотрим с вами красивые дома из клееного бруса и их фото. Ведь каждый согласится, что внешний вид играет немаловажную роль. Кроме того, важно чтобы дом был удобным и практичным в плане планировки.

Понятно, то самому такую работу не сделать, поэтому следует обратиться к профессионалам своего дела. Они предложат вам массу вариантов красивых домов. Или же вы можете сконструировать его сами, так, как видите его вы. Посмотрите, например, на фото, чтобы увидеть образец дома, который является довольно популярным.

Этот проект называется «Родовое гнездо». Конструкция практичная, красивая и надежная. Как видите, с одной стороны дома есть навес, под которым можно оставлять свое транспортное средство. Даже если у вас несколько автомобилей, они поместятся там. С другой стороны тоже есть навес, только он предназначен для отдыха всей семьей. Если вы любитель красивых и больших балконов, для вас создан именно такой вариант. Крыша дома простая двускатная. Сам клееный брус не прятали под отделкой, так как он выглядит просто великолепно. Материал просто покрасили и защитили от внешних факторов. Из такого проекта вы получаете:
- стильный дизайн;
- большой, удобный и практичный дом, общей площадью в 222 м2
- панорамные окна;
- отличные террасы;
- натуральные стены;
- красивый балкон.

И это еще далеко не все преимущества.
Следующий вариант для тех, кто не может позволить себе большой дом, а мечтает о маленьком гнездышке для двоих. Это позволит вам сэкономить средства не только на строительстве, но и в дальнейшей эксплуатации постройки. Ведь отапливать такой небольшой домик несложно. Посмотрите на этот проект

В этом домике есть все что нужно, для проживания супружеской пары. Конструкция имеет 2 этажа, кухню, гостиную, ванну и спальню. Такой небольшой и красивый домик имеет террасу, где можно поставить столик со стульями и проводить свободные вечера вместе. Домик обладает панорамными окнами, стильным дизайном и компактностью.
А вот еще несколько примеров красивых домов из клееного бруса, которые можно построить.
- Большой коттедж с плоской крышей и панорамными окнами. Такой дом из клееного бруса может позволить себе не каждый.

- Средний одноэтажный домик из клееного бруса, который выбирают много пользователей.

- Идеальное место для проведения отдыха. Дом из клееного бруса очень теплый, удобный и красивый. Благодаря панорамным окнам можно наслаждаться красотой природы.

Заключение
За счет брусовой технологии строительства домов, можно получить красивые постройки из клееного бруса, которые смогут прослужить вам долгую службу. Конструкции будут прочными, теплыми и экологически чистыми. А так как разнообразий планировок есть очень много, вы сможете выбрать красивый дом из клееного бруса для себя. Он не нуждается в отделке, так как сам по себе смотрится очень достойно и благородно. Если вы обладаете достаточным количеством средств и можете позволить себе такую постройку, то вы не разочаруетесь в своем выборе.

bouw.ru
Дома из клееного бруса — строительство под ключ и проекты | Низкие цены
Строительство домов из клееного бруса под ключ
Мы выполняем весь спектр строительных работ от фундамента до отделки и инженерии. Ниже вы можете ознакомится с нашими последними работами по строительству домов из клееного бруса «под ключ».
Специалисты нашей компании готовы подобрать или разработать оптимальный проект под любой бюджет. А это значит, что наше предложение актуально и для тех, кто планирует обзавестись скромным дачным домиком, и для тех, кто хочет стать обладателем «терема» площадью более 1000 м2. Строительство домов из клееного бруса – это доминирующее направление деятельности «Русского стиля», что уже является своего рода гарантией высокого качества всех работ.
Технология строительства домов из клееного бруса
Любому строительству всегда предшествует создание проекта – индивидуального или типового. Чаще всего наши клиенты выбирают первый вариант, потому что он учитывает все личные пожелания заказчика относительно планировки, особенности рельефа участка и другие факторы. После разработки и утверждения проекта, а также проведения ряда согласований с различными инстанциями, мы приступаем к работам. И первым этапом является всесторонняя подготовка участка. В этот процесс вовлекаются геодезисты, архитекторы, а также представители других специальностей.
Далее – возводится фундамент, преимущественно, свайно-ленточный, производятся гидроизоляционные работы, и осуществляется закладка элементов инженерных коммуникаций. Параллельно с этим мы осуществляем закупку клееного бруса требуемого размера, из которого в дальнейшем формируется «Домокомплект». Стены и перекрытия монтируются из предварительно пронумерованных деталей «Домокомплекта». В целом, процесс напоминает детскую развивающую игру «Конструктор», хотя на самом деле, он гораздо сложнее и ответственнее.
Окончательными этапами строительства дома являются: обустройство кровли, монтаж оконных и дверных конструкций, устройство полов, инженерные и отделочные работы.
Если вы хотите узнать более подробно о том, как возводятся дома из клееного бруса, то максимально полную информацию вы можете получить у наших менеджеров, которые с удовольствием расскажут вам об этом процессе.
Преимущества домов из клееного бруса
- Долговечность и прочность, если сравнивать со зданиями, построенными из цельного дерева (брёвен и бруса). Весь секрет – в технологии изготовления клееного бруса, ведь волокна древесины, расположенные в разных направлениях, препятствуют появлению деформаций по причине повышенной влажности и температурных перепадов.
- Высокая скорость строительства. На реализацию даже самых сложных в техническом и архитектурном отношении проектов у наших специалистов уходит не более шести месяцев.
- Наличие пазо-гребневого соединения. Это именно то, что позволяет отдельным брусьям надёжно фиксироваться без использования уплотнителей и клеящих составов.
- Стены, не требующие дополнительного утепления. Если вы не хотите проводить внешнюю и внутреннюю отделку, то это никак не повлияет на теплопроводность. По сути, в таких домах утепляется только крыша и пол.
- Экологическая безопасность. Древесина – это материал, не приносящий вреда, а наоборот, оказывающий благотворное влияние на здоровье, что особенно характерно для ели, кедра, сосны и лиственницы. Бытует мнение, что клей, использующийся для фиксации ламелей, выделяет в воздух токсичные вещества. Так было раньше, но теперь добросовестные производители клееного бруса используют усовершенствованные клеевые составы, которые, к тому же, берут на себя функцию антисептиков.
wood-style.ru
Дом из клееного бруса — фото внутри и снаружи, проекты с планировками

Дома из клееного бруса
Что такое клееный брус?
Первыми использовали подобную технологию предприимчивые финны. Изменчивый климат и неблагоприятные условия окружающей среды, заставляли финских строителей искать новый материал для возведения домов, и он был найден. Экологически чистый и относительно недорогой, он стал настоящей находкой для тех, кто ценит надёжность и качество.
Исходный материал для строительных работ представляет собой фрагменты древесины, которые склеены между собой специальным составом, в нём содержатся примеси смол и антисептические пропитки. Внешне такой брус напоминает обычный профилированный брус, выточенный из цельной древесины. Однако, благодаря сложной технологической обработке, клееное дерево намного прочнее и менее подвержено процессам разрушения. В ходе проведения серии экспериментов удалось установить, что клееный брус менее подвержен деформации при повышенных показателях влажности и перепадах температуры в окружающей среде. Это обусловлено тем, что фрагменты бруса склеены между собой под разными углами.

Плюсы домов из клееного бруса
Как мы уже упоминали выше, этот материал считается экологически чистым. В клеевом составе, который применяется при производстве, содержится фенол, но его количество настолько мало, что им можно смело пренебречь.
Вы сможете возвести дом буквально за месяц. Для этого вам понадобится рекордно малое количество рабочих рук.
Отдельно следует рассказать о теплопроводности материала. Характеристики бруса позволяют не выполнять дополнительное утепление стен в здании. Вы можете наслаждаться комфортной температурой даже в серьёзные морозы. Хотите максимально утеплить дом? Стройте его из клееного бруса! Это поможет в дальнейшем не тратить лишние деньги и сэкономить на отоплении.

Минимальный показатель усадки делает клееный брус универсальным материалом для строительства.
Те, кто сталкивался со строительством домов из цельного дерева, прекрасно осведомлены о том, что такая конструкция обязательно должна дать усадку в пределах от 2 –х и до 15 %. Но если вы решите использовать при возведении здания клееный брус, то эта величина будет значительно ниже. Да и сама усадка происходит достаточно быстро. А это значит, что к финальной отделке можно будет приступить гораздо раньше.Клееный брус дороже обычного. Но как показывает практика, в результате можно сэкономить именно на нём. А теперь расскажем почему. Составляя смету на строительство, подрядчик обязательно просчитает трудозатраты на подготовку строительного материала. Так вот, клееный вариант бруса в отличие от обработки бревенчатых балок не требует специального оборудования и особых навыков. Как видим, дороговизна исходного материала уравновешивается отсутствием значительных трудозатрат и дополнительного оборудования.

Этапы возведения дома из клееного бруса
- Первым делом нужно установить ленточный фундамент. С этой целью по периметру будущей конструкции делают канаву определённой ширины и глубины. Её стенки тщательно выравниваются. На дно высыпается щебень и песок. Общая высота такой подушки примерно 10 сантиметров.
- Затем наступает пора вставки опалубки. Для этого подручный материал фиксируется в канаве поперечными рейками и специальными ограничителями. Будущий фундамент армируется с помощью прутов из арматуры. Проводится усиление конструкции в углах, выполняется планировка выведения канализационных стоков и подводка водоснабжения к дому. Когда этот этап закончен, делают послойную заливку бетонной смеси. По истечении 2-3 недель, когда фундамент застынет, можно будет приступать к непосредственному возведению стен строения.
- Но перед этим на фундамент выливают заранее подогретую битумную смесь, сверху на неё укладывают рубероид и повторяют эту процедуру несколько раз к ряду. На выходе мы получаем покрытие называемое выстилка. Именно на неё выкладываются подкладочные доски, которые выступают в роли стыковочных.
- Следующий этап — укладка первого венца с прокладкой из специального джутового утеплителя. Затем проводят соединение балок при помощи деревянных костылей. Они фиксируют балки между собой. В целом, сборку дома из клееного бруса можно сравнить с игрой в конструктор «Лего». Дом собирается, словно огромный пазл. Таким образом набираются стены до самой крыши.
- Если вы думаете, что клееная деревянная стена будет полна щелей, то напрасно. Технология укладки позволяет полностью исключить их появление. Именно поэтому из такого материала предпочитают строить загородные дома, коттеджи и бани. Простота монтажа конструкции и относительная дешевизна работ – неоспоримое преимущество клееного бруса.
Дома из клееного бруса — идеи реализованных проектов
Клееный брус — проект Ольга






Клееный брус — проект у реки





Небольшой проект из клееного бруса




Фисташковая окраска дома из клееного бруса






Прекрасный пример интерьера в доме из клееного бруса



Большой дом из клееного бруса



Дома из клееного бруса — проекты с площадью и планировкой














































































































uutvdome.ru
Дом из клееного бруса — фото внутри и снаружи, проекты с планировками
Древесина всегда являлась материалом №1 для постройки жилых зданий. Она доступна по цене, экологична и проста в монтаже. Ранее использование дерева в строительстве ограничивалось отсутствием возможности создания сложных архитектурных форм. Появление в продаже клееного бруса решило эту проблему. В данном обзоре мы расскажем об особенностях монтажа домов из этого универсального материала.

Дома из клееного бруса
Что такое клееный брус?
Первыми использовали подобную технологию предприимчивые финны. Изменчивый климат и неблагоприятные условия окружающей среды, заставляли финских строителей искать новый материал для возведения домов, и он был найден. Экологически чистый и относительно недорогой, он стал настоящей находкой для тех, кто ценит надёжность и качество.
Исходный материал для строительных работ представляет собой фрагменты древесины, которые склеены между собой специальным составом, в нём содержатся примеси смол и антисептические пропитки. Внешне такой брус напоминает обычный профилированный брус, выточенный из цельной древесины. Однако, благодаря сложной технологической обработке, клееное дерево намного прочнее и менее подвержено процессам разрушения. В ходе проведения серии экспериментов удалось установить, что клееный брус менее подвержен деформации при повышенных показателях влажности и перепадах температуры в окружающей среде. Это обусловлено тем, что фрагменты бруса склеены между собой под разными углами.

Плюсы домов из клееного бруса
Как мы уже упоминали выше, этот материал считается экологически чистым. В клеевом составе, который применяется при производстве, содержится фенол, но его количество настолько мало, что им можно смело пренебречь.
Вы сможете возвести дом буквально за месяц. Для этого вам понадобится рекордно малое количество рабочих рук.
Отдельно следует рассказать о теплопроводности материала. Характеристики бруса позволяют не выполнять дополнительное утепление стен в здании. Вы можете наслаждаться комфортной температурой даже в серьёзные морозы. Хотите максимально утеплить дом? Стройте его из клееного бруса! Это поможет в дальнейшем не тратить лишние деньги и сэкономить на отоплении.

Минимальный показатель усадки делает клееный брус универсальным материалом для строительства. Те, кто сталкивался со строительством домов из цельного дерева, прекрасно осведомлены о том, что такая конструкция обязательно должна дать усадку в пределах от 2 –х и до 15 %. Но если вы решите использовать при возведении здания клееный брус, то эта величина будет значительно ниже. Да и сама усадка происходит достаточно быстро. А это значит, что к финальной отделке можно будет приступить гораздо раньше.
Клееный брус дороже обычного. Но как показывает практика, в результате можно сэкономить именно на нём. А теперь расскажем почему. Составляя смету на строительство, подрядчик обязательно просчитает трудозатраты на подготовку строительного материала. Так вот, клееный вариант бруса в отличие от обработки бревенчатых балок не требует специального оборудования и особых навыков. Как видим, дороговизна исходного материала уравновешивается отсутствием значительных трудозатрат и дополнительного оборудования.

Этапы возведения дома из клееного бруса
- Первым делом нужно установить ленточный фундамент. С этой целью по периметру будущей конструкции делают канаву определённой ширины и глубины. Её стенки тщательно выравниваются. На дно высыпается щебень и песок. Общая высота такой подушки примерно 10 сантиметров.
- Затем наступает пора вставки опалубки. Для этого подручный материал фиксируется в канаве поперечными рейками и специальными ограничителями. Будущий фундамент армируется с помощью прутов из арматуры. Проводится усиление конструкции в углах, выполняется планировка выведения канализационных стоков и подводка водоснабжения к дому. Когда этот этап закончен, делают послойную заливку бетонной смеси. По истечении 2-3 недель, когда фундамент застынет, можно будет приступать к непосредственному возведению стен строения.
- Но перед этим на фундамент выливают заранее подогретую битумную смесь, сверху на неё укладывают рубероид и повторяют эту процедуру несколько раз к ряду. На выходе мы получаем покрытие называемое выстилка. Именно на неё выкладываются подкладочные доски, которые выступают в роли стыковочных.
- Следующий этап — укладка первого венца с прокладкой из специального джутового утеплителя. Затем проводят соединение балок при помощи деревянных костылей. Они фиксируют балки между собой. В целом, сборку дома из клееного бруса можно сравнить с игрой в конструктор «Лего». Дом собирается, словно огромный пазл. Таким образом набираются стены до самой крыши.
- Если вы думаете, что клееная деревянная стена будет полна щелей, то напрасно. Технология укладки позволяет полностью исключить их появление. Именно поэтому из такого материала предпочитают строить загородные дома, коттеджи и бани. Простота монтажа конструкции и относительная дешевизна работ – неоспоримое преимущество клееного бруса.
Дома из клееного бруса — идеи реализованных проектов
Дорогие читатели, надеемся, что информация, приведенная в этой статье, поможет вам определиться с выбором материала для постройки дома, и вы станете счастливым обладателем дачи из клееного бруса!
Клееный брус — проект Ольга






Клееный брус — проект у реки





Небольшой проект из клееного бруса




Фисташковая окраска дома из клееного бруса






Прекрасный пример интерьера в доме из клееного бруса



Большой дом из клееного бруса



Дома из клееного бруса — проекты с площадью и планировкой














































































































thewalls.ru
Красивые дома из клееного бруса

adminЯнв 30, 2017Статьи
Клееный брус считается одним из строительных материалов, который пришел сравнительно недавно. Своими преимуществами клееный брус не уступает ни одному современному строительному материалу. В ряду его достоинство самым главным можно выделить высокую теплоизоляцию, что позволяет не использовать утеплитель при строительстве дома из клееного бруса. Благодаря тому, что у данного материала гладкая поверхность, брус не требует дополнительной отделки, а это, в свою очередь, экономия на времени и финансовых вложений. Дом из клееного бруса (ссылка) не подвергается усадке, что говорит о том, что сразу же после возведения дома можно отделывать внутри и обставлять мебелью. Обыкновенный брус и бревна могут позавидовать такому преимуществу. К тому же, Красивые дома из клееного бруса не только красивы внешне, но еще и обладают чудесными целебными свойствами. Благодаря своей экологичности и природному материалу, жить в таком доме полезно для здоровья и общего самочувствия. Все требования при строительстве дома из клееного бруса учтены, а именно – звукоизоляция, теплоизоляция, огнестойкость, долговечность, надежность и экологичность. За последнее время все больше и больше возводятся красивые дома из клееного бруса. И это не просто так. У деревянных домов из этого материала полностью отсутствует возможность появления трещин. Дом не дает усадки, не скручивается и не изгибается. Строительство самого дома займет меньше времени, чем строительство из профилированного или оцилиндрованного бревна. Таким образом, дом из клееного бруса – это современный и совершенный вид строительства, который позволяет возводить дом мечты человека. Благодаря тому, что современные технологии творят просто волшебство, можно возвести даже самый небывалый и необычный проект, который отличит своего хозяина от типичных домов.
НазадАукцион на реконструкцию краевой больницы проведут повторно Вперёд«Сибиряк» построит дома для сдачи в аренду
Похожие статьи
inctanh.com
Проекты домов из клееного бруса
ПОДЕЛИТЬСЯ С ДРУЗЬЯМИ:
Этапы строительства домов из клееного бруса
Строительство дома из клееного бруса включает в себя следующие этапы:
- Возведение фундамента. Как и для многих типов деревянных домов, широко используется ленточное основание и свайно-винтовой фундамент, которые являются наиболее выгодным. Процесс обустройства фундамента занимает от одного дня до месяца.
- Изготовление комплекта дома в производственных цехах.
- Возведение коробки, в ходе чего производится скрепление клееного бруса с использованием нагелей, шпилек, перерубов или жесткого немецкого профиля.
- Монтаж кровли. В качестве материала для домов из клееного бруса хорошо зарекомендовала себя мягкая кровельная плитка. Этот красивый и практичный материал идеально сочетается с формами стен, обеспечивая длительную и надежную эксплуатацию. Более дорогостоящие проекты предусматривают использование натуральной черепицы.
- Окраска стен, включающая в себя шлифовку, обработку антисептической пропиткой, защиту торцевых поверхностей и нанесение промежуточного и основного покрытия.
- Укладка полов.
- Внутренние отделочные работы.
- Устройство коммуникаций.
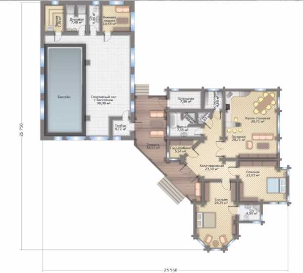
Типовой проект дома из клееного бруса
Стандартный проект дома из клееного бруса включает в себя:
- пояснительную записку
- подробную визуализацию в режиме 3D
- план привязки на участке
- планы этажей и фундамента с размерами
- фасады с размерами
- экспликацию окон и дверей
- план кровли
Преимущества проектирования домов из клееного бруса от компании Эко-тех
Компания «ЭКО-ТЕХ» осуществляет проектирование домов из клееного бруса по выгодной цене. Качественные, долговечные и эстетически привлекательные проекты станут прекрасным решением для загородного строительства. Мы предлагаем ряд выгодных преимуществ, которые делают сотрудничество с нашей компанией эффективным и надежным вложением средств:
- использование в качестве сырья только высококачественного архангельского леса зимней рубки
- выпуск комплектов дома из клееного бруса на собственном производстве, оснащенном высокопроизводительным оборудованием
- пятнадцатилетний опыт работы на рынке позволил сформировать опытную команду профессионалов в сфере проектирования и осуществления строительных работ
- индивидуальный подход к каждому клиенту, который дает возможность реализовывать даже самые сложные и необычные проекты
- гарантия на возведенный дом – 50 лет, а также оперативное устранение возникших мелких дефектов.
Скорость строительства деревянного дома из клееного бруса
Некоторые стремятся переехать в загородный дом как можно быстрее. Но существуют объективные сроки строительства.
Итак, вначале осуществляется эскизное и рабочее проектирование дома. Такая работа может растянуться на срок от 2 недель и вплоть до нескольких месяцев. И именно заказчик, точнее его предпочтения при проектировании дома играют в этом существенную роль.
После того, как заказчик одобряет проект необходимо переходить к дальнейшим этапам строительства:
- примерно 3 недели потребуются на поставку бруса, и только в пик сезона брус могут доставлять до полутора месяцев,
- 1 месяц требуется для закладки фундамента,
- 3-4 недели уходит на сборку коробки будущего дома,
- около 1 месяца занимает монтаж кровли,
- 3 недели, иногда чуть больше, нужно для монтажа инженерных систем.
www.ecotechstroy.ru
Дома из клееного бруса и фото стилей внутри дома
Дома из клееного бруса позволяют создавать самые яркие и изящные дизайнерские проекты. Когда дом уже готов возникает вопрос во внутреннем оформлении и выборе его стиля. В этой статье мы разберем какие бывают проекты дизайны домов из бруса.
Выбираем стиль оформления

Интерьеры домов из клееного бруса разнообразны, в которых присуще цветовые сочетания и оригинальность дизайнерских решений
Интерьеры домов из клееного бруса разнообразны, в которых присуще цветовые сочетания и оригинальность дизайнерских решений. Для правильного оформления дома специалисты рекомендуют выполнить несколько важных пунктов:
- Окрашивание стен позволяет сэкономить средства на обшивке конструкции. Используя гипсокартон, можно сделать помещение светлым и визуально расширить его.
- Дерево позволяет сочетать несколько направлений стиля.
- Отсутствие рамок поможет окружить себя теми предметами, которые будут радовать.
Преимущества и недостатки домов из клеенного бруса

Благодаря своей форме, длине и толщине, клееная доска позволяет строить конструкции любой сложности
Благодаря своей форме, длине и толщине, клееная доска позволяет строить конструкции любой сложности. Конечно, каждый материал имеет свои преимущества и недостатки, и клееный брус не исключение:
Рекомендуем к прочтению:
- Конструкция из клееной доски дает быструю и минимальную усадку, что позволяет в минимальные сроки закончить строительство.
- Процесс строительства не зависит от времени года, строить дома можно при любой погоде (зной, мороз).
- Благодаря отсутствию трещин и неровностей интерьер такого строения смотрится привлекательнее.
- Нет необходимости в дополнительной герметизации стен.
Вообще, деревянный дом ассоциируется с теплом, комфортом и уютом. В создании дизайна дома могут возникнуть нюансы, т.к. брус не совсем хорошо смотрится с такими стилями, как: хай тек, техно. Такой важный момент немного ограничивает выбор направления, но современные дизайнеры смогли найти решение и создать гармоничный стиль дома.
Интерьер деревянного дома
Для воплощения желаемой стилистики дома, следует продумать все до мелочей: предметы декора, внутреннюю отделку, мебель. Предлагаем рассмотреть несколько необычных и интересных проектов.
Колониальный стиль

Это направление в дизайне предусматривает наличие отделки стен обоями или декоративной штукатуркой
Это направление в дизайне предусматривает наличие отделки стен обоями или декоративной штукатуркой. В основе колониального стиля лежат традиции английского быта. Главным акцентом является наличие контрастности черного и белого цвета на дереве. Как правило, дизайнеры наносят белый цвет на потолок, а черным оттеняют его перекрытия. В качестве напольного покрытия применяют темную плитку либо ламинатную доску с небольшими потертостями. Для декора прекрасно подойдут этнические фигурки, образы животных и музыкальные инструменты. Из мебели отдают предпочтение ротангу или дереву. Основная особенность колониального стиля — это натуральность всех элементов дизайна. На фотографии представлен дом в колониальном стиле
Рекомендуем к прочтению:
Скандинавский стиль

Скандинавский стиль равен белому цвету, т.е. вся работа должна быть светлой и теплой
Скандинавский стиль равен белому цвету, т.е. вся работа должна быть светлой и теплой. Стены выкрашивают в белую краску, за счет чего помещение становится светлым и больше. В качестве дверей используют текстиль. Ткань должна быть легкой и пропускать солнечные лучи. Оттенить помещение можно с помощью ярких предметов. Вообще, скандинавский стиль это идеальное сочетание светлых оттенков, дерева, которые гармонично дополняют друг друга.
Рустикальный стиль

Это достаточно молодое направление в дизайне, основная его особенность — это отсутствие привязки к определенной исторической эпохе
Это достаточно молодое направление в дизайне. Основная его особенность — это отсутствие привязки к определенной исторической эпохе. В рустикальном доме прекрасно уживаются старые предметы с современными технологиями, главное не переборщить в количестве предметов. Цветовая стилистика предусматривает использование цвета камня, дерева, бежевой или белой краски. Из предметов декора допустимо использование скульптуры животных.
Если вы не уверены или сомневаетесь в своем выборе, просмотрите готовый проект дома из клееного бруса, фото поможет визуализировать дизайн будущей конструкции. Помните, оригинальность стиля вашего дома сделает его привлекательным и уникальным не только изнутри, но и снаружи.
kakpostroitdomic.ru


