Как собрать дверную коробку: Страница не найдена — Дверной Гуру
Как правильно собрать и установить дверную коробку межкомнатной двери: видео и инструкция
Экономия в ремонте — это не всегда хорошо, но если есть человек с руками и мозгами он справится с любой задачей самостоятельно. При покупке дверного блока в комплекте поставщика, коробка прилагается в разобранном виде. Для того чтобы узнать как правильно и аккуратно собрать и установить дверную коробку межкомнатной двери своими руками, необходимо ознакомиться с видео, к которому прилагается и инструкция.
Демонтаж старой двери
Не во всех квартирах ремонт начинается с нуля. Часто просто заменяют старую дверь на новую. В таком случае необходимо провести демонтаж – удаление старого дверного блока, и подготовку проема к монтажу нового. Обычно процедура производится без сохранения старого полотна и дверной коробки, поэтому она осуществляется путем грубого их выламывания. Но аккуратность не повредит, если хозяину не хочется делать повторную отделку стен и углов дверного проема.
Для начала снимите дверное полотно. С карточных петель дверь можно снять приподняв ее, а универсальные необходимо открутить с одной стороны.
Демонтаж старой двери
Снимите обналичку, прикрученную саморезами (открутите шуруповертом или отверткой). Если обналичка прибита гвоздями, подденьте ее широкой стамеской и выньте гвозди с помощью пассатижей.
Определите место крепления ее к проему. Обычно крепится в углублении для петель.
Обрежьте всю монтажную пену, с помощью которой производилось уплотнение дверной коробки. Удаляется с помощью острого ножа.
Совет. При уплотнении дверной коробки штукатуркой вооружитесь зубилом: легким постукиванием по нему молотком удалите все лишнее.
Выньте цельную коробку из дверного проема. Положите на горизонтальную плоскость и разберите ее. Если сохранение полотна и коробки необязательно, то удалить их можно с помощью молотка, топора и ломика-гвоздодера.
Выбор блока межкомнатной двери
При выборе дверного блока стоит учесть:
-
Способ открытия. Самыми популярными являются распашные двери. При недостатке пространства используют раздвижные двери-купе. Они монтируются особым способом и открываются по направляющим планкам, задвигаясь в специальную выемку в стене. Намного реже используются складные (в форме гармошки) и конюшенные (представляющие собой 2 половины полотна, распахивающиеся в обе стороны). Они подбираются к соответствующему дизайну помещения.
-
Шумоизоляция. На это качество влияет не только полотно, но и коробка межкомнатной двери, а также обналичники. -
Вес полотна. Этот фактор зависит исключительно от материала, из которого изготовлена дверь. Чем она тяжелее, тем качественнее должна быть фурнитура.
-
Материал исполнения. Изготовляют двери из массива дерева, плит МДФ и ДСП. Наиболее качественными считаются изделия, выполненные из цельного дерева, минусом является вес такой двери.
Совет. При выборе блока межкомнатной двери, проконсультируйтесь с продавцом об ее классе пожарной безопасности. Так, дверь защитит вас не только от шума, но и от огня.
Разметка и замеры
Перед тем как собрать дверную коробку необходимо произвести несколько точных замеров и сделать разметку материалов. Дверной блок устанавливается после того, как готовы полы и произведена отделка стен.
Снятие размеров производится по высоте, ширине и толщине дверного проема. Показания следует указывать с точностью до 0,01 см. При неточности в измерении, дверь установленная своими руками, может неплотно прилегать, или скрипеть при открытии\закрытии.
Разумеется, существуют определенные стандарты дверных коробок:
-
кухня – 60 х 200 см;
-
жилые комнаты – 70-80 х 200 см;
-
санузел – 60 х 190-195 см.
Но с учетом старых построек, нарушения геометрии проема и разницы в толщине стен, лучше перестраховаться и замерить все повторно. Это даст гарантии правильной работы дверного блока в целом.
Замеры межкомнатной двери
Чтобы произвести замеры, необходимо иметь под рукой следующие инструменты:
Переходите к измерению:
-
Измерьте высоту и ширину проема. Для определения верной горизонтали, ширина измеряется по уровню пола.
-
Определите габариты дверного полотна. Для этого необходимо от ширины проема отнять ширину бруса каркаса двери, умноженную на 2, а полученный результат округлить до сотни. Например, если измерение проема показало 90 см, а ширина бруса коробки 25 мм, то по простой формуле рассчитываются габариты полотна (900 — 25*2 = 850). На основании чего полотно должно составлять 80 см. Высота определяется аналогичным образом.
-
Отдельно замерьте проемы в ванной комнате и санузле. Здесь, за счет порожка, который предотвращает вытекание воды, высота значительно меньше.
-
Вычислите глубину дверного блока. Для этого следует сделать замер толщины стены.
Важно! Обрезать дверное полотно не рекомендуется, подбирать его необходимо по проведенным замерам. Если этим пренебречь, вы столкнетесь с образованием слишком больших зазоров или порчей двери.
Прежде чем установить дверную коробку также необходимо проверить уровень пола. Важно, чтобы пол был ровным. Этот замер производится с помощью строительного уровня. Разница между стойками дверной коробки не должна превышать 2 мм.
Схема сборки дверной коробки
В продаже дверной блок встречается в собранном состоянии или по частям. В первом случае полотно подобрано под блок, и все параметры подогнаны изготовителем.
Чтобы собрать дверную коробку потребуются:
-
молоток;
-
саморезы;
-
гвозди;
-
дрель;
-
отвертка или шуруповерт;
-
ножовка с полотном по дереву и металлу;
-
карандаш или маркер.
Инструменты для установки двери
Итак, приступаем к сборке дверной коробки.
-
На ровной горизонтальной поверхности (пол или большой стол) расстилаем материал, который будет служить защитой от царапин при сборке.

-
Выкладываем 2 вертикальных бруска, разобранной коробки. На них есть притвор – специальные пазы, фиксирующие полотно.
-
Вкладываем дверное полотно в притвор, оставляя зазор 2-3 мм.
-
Выравниваем стойки коробки и прикладываем верхний брусок.
-
Отмечаем длину верха коробки и отрезаем лишнее. Резать стоит строго по размерам, но уж если немного промахнулись – не беда, маленькие недостатки скроет наличник.
-
Прикрутите верхнюю перекладину к стойкам с помощью саморезов или аккуратно прибейте гвоздями.
Замерьте еще раз дверной проем и отрежьте лишнее.
-
Двери в санузлы оснащаются порогом. Отмерьте еще один короткий брус для порога аналогично верхней перекладине.
-
Дверная коробка готова к монтажу.
Установка фурнитуры
После того как удалось собрать дверную коробку, необходимо установить на нее петли. Более эстетично будут смотреться, петли прикрученные на одной высоте у каждой из дверей.
Не убирая дверной блок с горизонтальной поверхности, после его сборки, приложите на предполагаемое место фурнитуру и обведите острым карандашом пунктирной линией. Снимите дверное полотно и выберете стамеской часть древесины, глубиной соответствующей толщине карты навеса. Приложите фурнитуру и проколите места скручивания шилом. Прикрутите навесы саморезами. Часть его с флажком, на который будет навешена петля, крепится на стойке, а петля на дверном полотне.
Прикрутить фурнитуру на дверную коробку можно и после ее установки, но делать это придется, держа дверное полотно на весу. Одному проделать данную операцию точно не удастся.
Установка двери
Установка коробки межкомнатной двери в проем
После того как все подготовительные этапы для установки дверной коробки в проем пройдены, можно приступать к монтажу. Для того чтобы П-образную конструкцию не «водило» необходимо установить на нее вспомогательные планки (распорки) достаточно двух – снизу и в середине стойки.
Для того чтобы проверить правильность геометрии рамки необходимо воспользоваться отвесом или уровнем. Отвес легко сконструировать с помощью шпагата и болта, привязав его за шляпку.
Поместив конструкцию в указанное место, проверьте вертикальность стоек еще раз. Не поленитесь это сделать, в случае неровности дверь не будет закрываться. Данная процедура проводится с двух сторон каждой стойки.
Монтаж коробки выполняется анкерными болтами. Они зафиксируют дверной блок и предотвратят его деформацию. Для этого необходимо просверлить в стойках по 3 сквозных отверстия прямо в проем, а после закрутить болты.
Зазоры между дверной коробкой и проемом устраняются с помощью монтажной пены. Для того чтобы не испачкать лицевую сторону конструкции, необходимо обклеить ее малярным скотчем. Заполняйте пустоты пеной аккуратно с учетом того, что при застывании она увеличивает объем на 30-40%. Для того чтобы коробку не повело, необходимо установить деревянные распорки. После засыхания пены они удаляются.
Завершающий этап
К завершающему этапу относится установка наличников на дверную коробку. Они придают дверному блоку эстетичный вид и скрывают мелкие недостатки монтажа.
Завершение монтажа межкомнатной двери
В первую очередь определяется длина наличника. Для этого можно воспользоваться таблицей размеров, или определить самостоятельно, измерив по крайней точке коробки длину и ширину конструкции. Для стыка наличников необходимо сделать боковой срез под углом в 45°. Можно использовать стусло (специальный прибор, позволяющий резать изделия из дерева по заданным параметрам угла) либо электролобзик, предварительно измеряв транспортиром необходимый угол.
Далее, каждый из боковых наличников прибивается к коробке двумя гвоздями (снизу и посредине). Вымеривается и запиливается с углом в 45° верхний горизонтальный наличник. После этого все 3 планки прибиваются окончательно.
Совет. Для того чтобы гвозди не выглядывали из полотна наличника, их необходимо утопить. Вырежьте сверлом, диаметром, соответствующим размеру шляпки гвоздя, углубление 1-1,5 мм.
Несколько советов по установке дверной коробки
-
При подрезании брусьев дверной коробки используйте ножовку по металлу или электролобзик. Их мелкие зубчики не позволят вам сделать сколы.
-
При установке полотна из цельной древесины используйте 3 навеса. Так тяжелая дверь простоит дольше, и петли не будут провисать. Врезают третью петлю в середине дверной коробки либо смещают вверх.
-
Двери для кухни и жилых комнат должны отстоять от уровня пола на 1-2 см.
Это делается для обеспечения вентиляции. Также в кухонную дверь врезают небольшие вентиляционные решетки, чтобы при утечке газа он не концентрировался в одной комнате.
-
Если помещение имеет толстые стены, и это не было учтено при выборе двери, то оказывается, что ширина коробки меньше ширины проема. Для коррекции такого дефекта используют добор. Бруски или доски, которые полностью перекроют оголенную стену.
-
При окончательной установке дверной коробки, чтобы пена лучше схватывалась, необходимо распылителем намочить поверхность.
Теперь вы точно готовы к установке дверной коробки для межкомнатной двери. На предложенном видео более детально описываются некоторые этапы этого нелегкого процесса.
Как правильно установить межкомнатную дверь: видео
Как запилить дверную коробку под 90 градусов
Сборка дверной коробки
Вступление
В этой статье я расскажу, как осуществляется сборка дверной коробки , а именно как запилить и собрать дверную коробку в двух разных исполнении:
- Запил коробки под 45°
- Запил коробки под 90°.

Сборка дверной коробки
Дверная коробка с уплотнителем
коробка с уплотнителем
Дверная коробка без уплотнителем
Межкомнатная дверь состоит из дверного полотна, навесных петель, врезного замка или защелки, а также дверной коробки. Как правило, дверная коробка, для дверей среднего ценового класса, поставляется в виде «конструктора» сделай сам, то есть в разобранном виде. Состоит коробка из трех профилированных деревянных брусов, покрытых шпоном или пленкой под цвет дверного полотна. Длина вертикальных брусов-2100-2200 мм;горизонтального бруса-1000-1100 мм. Отличаются дверные коробки, от каждого производителя, своей подготовленностью к установке.
Дверная коробка с заводским запилом 45 градусов.
У некоторых производителей дверные коробки уже отпилены и подрезаны под углом 45°, как раз под размер полотна и полностью подготовлены для сборки. Но большество коробок поставляются в не подготовленном виде. Их нужно подготовить.
Рассмотрим два варианта сбора дверной коробки
Вариант 1. Запил и сборка коробки под углом 45°
Запил коробки под 45 градусов
Правильная стыковка дверной коробки в углах
Запил коробки на стусле
Дверная коробка готова к сборке
- Возьмите два будущих вертикальных брусков коробки. При размере полотна 2000 мм и чистовом напольном покрытии в 30 мм длина короткой стороны бруса должен быть-2000+30+зазор межу полотном и чистовым полом:10-15 мм=2040-2045 мм.
- Поставьте отметку на внутренней стороне Брусов коробки по необходимой длине полотна.
- Отпилите лишнее под углом. Угол отпила бруса должен быть по внутренней стороне 135° или по наружней -45°. Длинна обоих вертикальных Брусов коробки должна быть одинаковая.
- Такую же процедуру проделайте и с горизонтальным коротким брусом. Отличие только в том, что отпиливать придется с двух сторон. Будьте внимательны с размерами. Главное во всех столярных работах: Семь раз отмерь, один раз отрежь.

При разметке не забывайте, что зазор межу полотном и самой коробкой должен быть 3 мм.
Вариант 2. Сборка коробки под углом 90°
Сборка коробки под углом 90°
Вид дверной коробки для прямого соединения
Соединение дверной коробки под 90 градусов
Подготовка к прямому соединению коробки
При этом варианте сборки, в вертикальных стойках будущей коробки удаляется, так называемый притвор коробки, на толщину вертикального бруса. См. рисунок.
Сборка дверной коробки по шагам
Сборка дверной коробки
Сбор дверной коробки с запилом
После подготовки коробки приступаем к её сборке.
Разместите подготовленные части коробки на полу. Угловые стыки коробки соедините саморезами, по два самореза в каждый угол. В дверных коробках запиленyых под 90°саморезы вкручиваются под прямым углом(фото вверху слева ). В дверных коробках запиленных под 45°, саморезы вкручиваются под углом 45°(фото вверху справа). Коробка «почти собрана».
Для того чтобы сохранить параллельность вертикальных стоек и совпадение расстояния между ними по размеру дверного полотна, положите дверное полотно на «почти собранную» коробку, так как оно будет стоять в проеме. Зафиксируйте зазор между полотном и коробкой, вставив в зазор одинаковые кусочки оргалита или клинья.
Фиксация полотна в коробке для её правильной сборки
Теперь коробку нужно зафиксировать в таком положении. Делать это можно несколькими способами.
Способы зафиксировать дверную коробку, в нужном положении, перед установкой
Способ 1. Зафиксируйте дверную коробку с помощью не толстых реек. Рейки прибейте перпендикулярно стойкам, тонкими гвоздями в самый край вертикальных стоек. Реек должно быть две: посередине и в низу.
Уголок монтажный для сборки коробки
Способ 2. Укрепите стыки коробочных брусов будущей коробки. Добавьте к саморезам широкие и жесткие силовые уголки с дырками для крепления, Прикрутите силовые уголки, строго проверяя перпендикуляр и вертикальных и горизонтального Брусов.
Но я советую добавить еще одну фиксирующую рейку вниз коробки.
Сборка дверной коробки окончена, уберите полотно из коробки. Собранная коробка готова к установке.
Дверная коробка своими руками — поэтапный процесс сборки и установки
В полный комплект дверного блока входит полотно, короб и петли. Приобрести готовую комплектацию в сборе бывает затруднительно, поэтому не остается ничего другого, как сделать дверную коробку своими руками из профилированного бруса или доверить эту задачу специалистам. Короб, чаще всего, приходится подбирать отдельно, причем он представляет собой не готовую к установке конструкцию, а несколько элементов, которые необходимо подогнать в соответствии с размером проема, сделать нужные запилы и собрать. Дверная коробка своими руками собирается не так просто, поэтому кроме инструмента, неплохо было бы иметь хотя бы небольшой навык столярных работ.
Материал дверной коробки
Короб служит не только обрамлением дверной створки, но и несущей основой.
От качества материала и установки изделия зависит прочность всей конструкции и ее долговечность. Выбор материала зависит от назначения двери и материала самого полотна. Металлопластиковые и металлические двери обычно поставляют в полной комплектации, поэтому рассмотрим лишь те случаи, когда изготовление дверной коробки приходится выполнять самостоятельно. Как правило, в этом случае речь идет о двух видах материала: древесине и МДФ.
- Натуральная древесина имеет различную плотность и сортируется на мягкую и твердую. Самый дешевый и ходовой товар – это сосна, но если речь идет об установке входных дверей, то следует ориентироваться на более твердый и дорогой сорт древесины, например, дуб. Он обеспечит долговечность, прочность и надежность конструкции.
- МДФ используют исключительно для межкомнатных дверей. Если предстоит собрать коробку из этого материала, следует обработать все резаные края нитролаком, чтобы обеспечить защиту от влаги.
Комплектация и стандартные размеры
Короб для двери состоит из нескольких планок: двух боковых, верхней и нижней, если в конструкции предусмотрен порог.
Если глубина дверного проема превышает соответствующие параметры бруса, свой комплект необходимо дополнить доборами, которые увеличат глубину короба.
Стандартные размеры дверных блоков варьируются по ширине и высоте. Соответствие параметров дверного полотна, блока и проема, указано в таблице.
Сборка дверной коробки своими руками выполняется с учетом следующих моментов:
- Между внутренней частью короба и полотном двери по всему периметру должен оставаться технологический зазор, шириной в 3 мм.
- Зазор между стеной и верхней частью короба должен составлять не менее 20 мм.
- Зазор между боковыми планками и стеной – 10 мм от каждой стороны. При установке на монтажную пену необходимо увеличит зазор минимум до 20 мм.
- Зазор между нижней частью створки и коробом или полом зависит от материала и места установки конструкции. Для сухих помещений эти параметры могут варьироваться в пределах 5–15 мм, для влажных, с целью обеспечения вентиляции, – 50 мм.

Варианты соединения элементов конструкции
Основную сложность в сборке дверных коробок представляет процесс соединения отдельных элементов. Состыковку горизонтальных и вертикальных планок изделия можно выполнить двумя способами:
- Посредством запила под углом 45 градусов. Этот процесс лучше выполнять торцовочной пилой, но за ее неимением подойдет стусло.
- Под прямым углом в 90 градусов. Для распила заготовки потребуется пила с мелкими зубьями.
Состыковка планок осуществляется посредством шиповых соединений или оцинкованными саморезами. На рисунке представлены варианты шиповых соединений, которые наглядно показывают, как собрать дверную коробку самому, чтобы обеспечить высокую прочность соединений.
При выполнении расчета параметров длины и ширины профильных реек, необходимо учесть, что длина шипа должна равняться толщине коробочного бруса. Шиповое соединение обеспечивает достаточную прочность готовой конструкции, но при желании можно произвести дополнительное армирование стыков гвоздями с цинковым покрытием.
Процесс сборки дверной коробки
Рассмотрим, как правильно собрать дверную коробку. В качестве исходного материала нам потребуется профилированный брус из натуральной древесины или МДФ.
Сборка коробки выполняется в следующем порядке:
- Проверяем параметры ширины и высоты проема. Для установки короба необходимо оставить зазор около 3 см. С помощью гидроуровня контролируем горизонтальность напольного покрытия в углах проема.
- Полотно и брус каркаса необходимо разложить на горизонтальной поверхности так, чтобы наружная часть (притворы) была повернута вверх. Створка должна находиться в одной плоскости с брусом. Если глубина планок больше, тогда необходимо выровнять плоскости, подложив под полотно несколько слоев картона или книги.
- Чтобы обеспечить равномерный зазор между полотном и брусом, по периметру можно проложить картон или отрезки старого линолеума.
- Остро отточенным карандашом или шилом отметить контрольные точки и отпилить лишний отрезок перекладины в соответствии с выбранной схемой.
- Поскольку работать приходится с профилированным брусом, то стыковке поперечен будут мешать выпуклые элементы притвора. Чтобы получить гладкую плоскость, сначала нужно отметить острым предметом границы спила. Здесь очень важна точность замеров и аккуратность работы, поскольку малейшие ошибки способны испортить внешний вид конструкции. Запил выполняют инструментом с мелкими зубьями. По достижении нужной глубины, оставшиеся излишки материала удаляют стамеской.
- Теперь подготовленные бруски раскладываем вокруг полотна, чтобы отметить расположение петель. Для этого от верхней и нижней части вертикального бруса отмеряем по 203 мм. Это стандартная высота крепления петель, плюс 3 мм на зазор.
- Далее наживляем карту петли двумя шурупами в соответствии с разметкой, отмечаем форму крепления. Теперь необходимо сделать углубление, соответствующее толщине карты.
- Флажки петель саморезами закрепляем в подготовленной выемке. Монтаж ответной планки замка выполняют после установки короба и навешивания полотна, чтобы не допустить расхождения.

- Теперь остается убедиться в перпендикулярности элементов конструкции и скрепить верхнюю перекладину с боковыми стойками.
- Если в конструкции предусмотрен порог, его принято крепить к боковинам под углом в 90 градусов. Здесь тоже необходимо аккуратно снять четверть, чтобы подготовить гладкую поверхность стыка поперечин.
- Прежде чем присоединить порог, необходимо еще раз убедиться в правильности сборки всей конструкции. Положить на ровную плоскость, поставить полотно на место, убедиться в наличии зазора, сдвинуть стойки в нужное положение, если понадобится.
- Теперь остается зафиксировать нижнюю поперечину и собственноручно сделанный короб можно устанавливать в проем.
Поэтапный процесс установки
Чтобы закрепить собранный каркас в проеме и поставить двери своими руками, необходимо выполнить следующие мероприятия:
- Установить раму в проем. Чтобы она держалась, вставить между коробом и стеной временные распорки из картона или пенопласта.

- Подготовить клинья, которые будут необходимы для окончательного монтажа и выравнивания зазоров. Для них можно использовать распиленные под разными углами отходы брусьев.
- Начинаем подклинивать изделие. Сначала ставим клинья непосредственно под петлями. Они исключат деформацию бруса, когда мы будем его прикручивать к стене. По одному клину вобьем в каждый верхний угол. Чтобы не произошло смещение конструкции, потребуется по два клина с каждого угла. Их вставляют с противоположных сторон таким образом, чтобы узкие части пересеклись.
- Далее проверяем уровнем положение каркаса, каждого его элемента. Короб должен располагаться вровень со стеной.
- Выполняем крепление боковины.
- Окончательный монтаж притворной части производим после того, как навесим на петли полотно. Чтобы каркас прочно держался, пока мы будем прикручивать петли и устанавливать створку, можно частично запенить зазор по закрепленной стороне и в двух-трех местах притворной части.
Совет: Перед запениванием необходимо очистить поверхность от пыли и смочить водой из пульверизатора.
Эти меры позволяют существенно повысить адгезию.
- Пока подсыхает пена, устанавливаем на полотно петли и другую фурнитуру, затем устанавливаем его на место.
- Притворную часть двери подклиниваем, когда дверь находится в закрытом положении. Затем закрепляем ее и запениваем щели по периметру.
Еще одно важное условие, чтобы в процессе установки не нарушить геометрию каркаса – использование распорных клиньев, которые соответствуют ширине короба и вставляются поперек.
Окончательный этап установки короба и двери – декоративное оформление проема наличниками.
Как собрать дверную коробку
В прошлой статье мы выяснили, как вырезать отверстия для установки дверной ручки и защелки. Настала пора разобраться со сборкой дверной коробки.
Дверная коробка состоит из двух боковых вертикальных элементов и одного верхнего горизонтального, соединяющего первые два. Реже используют еще и нижний горизонтальный элемент в качестве порога, но это, скорее исключение из общепринятых правил.
Как правильно запилить торцы дверной коробки
Одним из правил «хорошего тона», является запиливание стыков короба и наличников под углом в 45 градусов. Самый качественный запил производится с помощью торцовочной пилы. Если у вас нет возможности использовать этот инструмент, можете воспользоваться стуслом и специальной ножовкой для сверхчистого реза «пасовкой» или «шиповкой». Очень рекомендую для начала потренироваться на обыкновенных брусках и «набить руку».
Сначала запиливают боковые элементы короба. Не следует сразу отрезать стойки по длине. Объясню, почему. Если вы сделаете неправильный запил верхней части под углом 45 градусов, у вас уже не будет возможности исправить ошибку, отрезав еще раз, ведь стойка уже укорочена, и делать ее еще короче, будет просто некуда. Сначала запилите самое сложное, то есть, верхние угловые стыки и проверьте правильность запила угольником. Угол должен быть четким, без отклонений, а плоскость реза идеально ровной.
При отклонении даже в пару градусов, при сборке коробки, вы не сможете добиться на стыках угла в 90 градусов, что является обязательным условием качественной работы.
Закончив с запилом стоек, переходим к поперечному элементу короба. Тут так же нужно быть очень внимательным. Ведь второй конец нужно будет запилить не только под углом, но и по длине, так, чтобы остались необходимые зазоры между дверным полотном и боковыми стойками короба. Длина внутренней части, обращенной к дверному полотну должна быть на 8 мм. больше ширины дверного полотна. Если ширина дверного полотна составляет 60 см., то длина будет 60,8 см. Сделайте точную разметку и совершите распил.
Теперь необходимо отрезать боковые стойки по длине. Тут есть небольшой нюанс, который нельзя упустить из виду. Мало того, что нам нужен зазор над верхней частью дверного полотна, необходим зазор внизу примерно в 10 мм. Но пол, на который будет установлена коробка, может оказаться не идеально ровным, или «не в уровне».
В этом случае, если мы отрежем боковые стойки одинаковой длины, то при установке дверную коробку перекосит, ведь одна стойка будет выше другой.
Чтобы этого избежать, необходимо проверить плоскость пола в дверном проеме по уровню. Удобнее всего здесь использовать лазерный нивелир, но и обычным реечным уровнем можно с успехом увидеть разницу. Необходимо лишь, чтобы сам уровень поместился в ширину дверного проема. Если уровень короткий, то сделайте следующую нехитрую операцию. Отрежьте ровный брусок необходимой длины, и уже на него поставьте уровень, тем самым увеличив его длину.
Итак, скажем для примера, что вы обнаружили разницу в высоте пола по краям дверного проема в 6 мм. Как быть дальше? Стойку, которая будет опираться на низкое место, нужно сделать длиннее на эти самые 6 мм. Делаем расчет таким образом. Боковые стойки должны на 13 мм. превышать длину дверного полотна, и равняться 2,013 метра, что включает в себя длину полотна (2 метра), зазор над полотном (3 мм.) и зазор под ним (10 мм.
). Добавим к стойке, опирающейся на низкое место разницу в 6 мм. и получим 2,018 метра. Если же пол ровный и четко по уровню, то и стойки должны быть одинаковой длины (2,013 метра).
Теперь, когда все элементы короба запилены можно было бы начать сборку, но сначала следует разметить места для петель на дверном полотне и коробе.
Врезка и навешивание петель для дверной коробки
Сразу обращу ваше внимание, что без профессионального инструмента и опыта, установить качественно врезные петли у вас вряд ли получится. Врезка производится помощью ручного фрезерного станка, а не стамеской и молотком, как думают многие и ошибаются.
Поэтому рекомендую купить накладные петли, как на фото. Они не требуют врезки, и установка их не займет много времени и сил. Накладная петля состоит из двух частей входящих одна в другую и образующих одну плоскость. Меньшая внутренняя часть крепится к дверному полотну, а большая к стойке короба.
Отметьте на торце дверного полотна по 20 см.
от каждого края. Осмотрите внимательно полотно и решите, в какую сторону будет открываться дверь. Здесь важно не ошибиться и правильно расположить петли. Шарниры петель должны быть обращены в сторону распахивания двери.
Расположите петлю на торце до упора шарниров. Не следует сильно придавливать шарнир к краю полотна. Петля должна свободно вращаться на шарнирах, не задевая за полотно. Если же при открывании петли, вы заметили, что шарнир скребет по полотну, оставьте небольшой зазор в 1мм.
Накерните метку в одном из отверстий петли и просверлите отверстие, чуть тоньше самореза, которые идут в комплекте с петлями. Не нужно сверлить сразу все четыре отверстия. Вы можете ошибиться в разметке, и петлю уведет в сторону. Закрутив один саморез, и убедившись том, что петля не съехала и сидит ровно, просверлите оставшиеся отверстия и закрепите ее. То же самое проделайте со второй петлей.
Теперь прикрутим ответную часть петли к стойке короба. Для удобства дверное полотно лучше положить на пол и рядом расположить стойку короба.
Чтобы петли ровно легли на короб, дверь нужно чуть приподнять, отрегулировав высоту клиньями. Прислонив стойку короба к торцу, убедитесь, что она чуть выступает над полотном по длине, что после сборки позволит образоваться необходимому зазору в 3 мм. После чего просверлите отверстия для закрепления петли. Сейчас пока не нужно полностью прикручивать петли, ведь еще нужно собрать короб, а делать это удобнее без полотна.
Скручивание или сборка дверной коробки
Поднимите с пола дверное полотно и отставьте в сторону, тем самым освободив место для дверного короба. Скручивать коробку также удобнее на полу, в чем вы сами скоро сможете убедиться. Для начала необходимы следующие приготовления. Возьмите верхнюю часть короба и в плоскости среза, перпендикулярно ей, просверлите по два отверстия с каждой стороны для саморезов, примерно в сантиметре от краев, как на фото. В стойках короба сделайте по одному отверстию посередине, так же перпендикулярно плоскости.
Теперь, правильно расположив элементы короба, поочередно, продолжите сверление к примыкающей части, после чего скрутите их саморезами.
Не нужно искать каких-либо специальных саморезов. Подойдут любые, например те, что используют для закрепления гипсокартона к металлическим профилям. Самое главное условие здесь в четком примыкании запиленных торцов.
Чтобы части плотно прилегали друг к другу, подложите под них фанеру. Если же у вас очень ровный пол, то можно обойтись и без нее. Повторюсь, что самое важное здесь удержать от сползания плоскости в момент закручивания. Если у вас сильные кисти, то вы сможете избежать перекоса, просто удерживая короб одной рукой, в то время как другой будете закручивать саморез.
Как собрать дверную коробку своими руками
Двери — это важная деталь любого помещения, поскольку они обеспечивают защиту от нежелательного проникновения, сохраняют тепло и звукоизоляцию. Чтобы конструкция хорошо справлялась со своими функциями и прослужила дольше, нужно знать, как собрать дверную коробку, если нет возможности обратиться за помощью к профессионалам.
Составные части дверной коробки
Чтобы точно понимать, как собирается дверная коробка межкомнатных дверей, необходимо изучить ее структуру и составные части.
К ним относятся:
- притолока — «потолочная» планка, располагающаяся сверху конструкции;
- петельный брус — боковая часть, в нее врезаются петли;
- притворная часть — противоположная петельной, смыкается с дверью при закрывании, в нее устанавливается ответная сторона замка;
- порог — брус, расположенный внизу.
Необходимый инструмент
Чтобы сборка дверной коробки своими руками прошла быстро, необходимо заранее подготовить инструменты, которые понадобятся в процессе работы. Кроме составляющих частей коробки нужны следующие приспособления:
- простой карандаш, рулетка, угольник и уровень;
- электрический лобзик или циркулярная пила;
- перфоратор;
- дрель или сверло;
- шуруповерт;
- ножовка;
- шурупы, монтажная пена, крепления;
- необходимая фурнитура.
Как снимать размеры
Чтобы собрать качественную конструкцию, важно правильно снять размеры, в противном случае, дверь не встанет в коробке.
Существует несколько правил снятия размеров в домашних условиях:
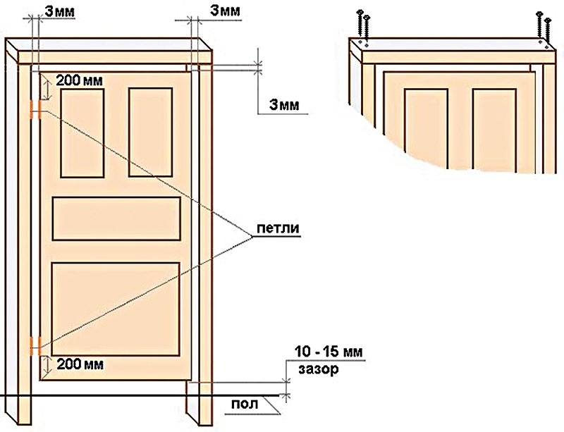
- В первую очередь замеряется дверной проем, внешние параметры коробки должны превосходить его на 70 мм. Что касается внутренних параметров, между дверным полотном и краем коробки должен сохраняться зазор 3 мм по периметру.
- Для зазора, расположенного снизу, существует отдельное правило, его высота может составлять от 10 до 15 мм. Это нужно для обеспечения в помещении циркуляции воздуха, что особенно важно для закрытых комнат, как ванная или кладовка. При монтаже дверей-купе необходимо учитывать, что будут устанавливаться профили.
- Часто, при строительстве бань владельцы не делают большой зазор внизу двери, это допустимо, но, в таком случае, необходимо тщательно измерить порог двери уровнем по углам.
Данные параметры являются обязательными, если найдено несоответствие, дверной проем необходимо расширить или уменьшить. Легче работать с искусственными проемами, сделанными из гипсокартона.
Способы сборки
Руководство по установке дверной коробки зависит от способа ее сборки. Конструкции бывают с порогом или без и с разными нюансами закрепления деталей.
Как собрать дверную коробку под 45° и без порога
Обычно, по такой схеме ставятся изделия из МДФ. Подробная инструкция для изготовления коробки данным способом:
- Чтобы устранить неровности, нужно провести торцовку заготовок коробки.
- Петельная и притворная балки запиливаются в верхней части, под 45 градусов внутрь. Для работы лучше использовать инструменты с мелкими зубчиками или ножовку по металлу, это поможет избежать повреждения отделки. При работе с изделиями, выполненными из экошпона или ламинированного МДФ, пилить лучше всего с изнаночной стороны, чтобы возможные трещины остались именно на ней.
- После обработки боковых частей коробки, можно переходить к запиливанию притолоки. Ее запиливают с двух сторон под 45 градусов внутрь. Важно все тщательно вымерять, чтобы в собранном виде части составляли прямой угол. Не стоит забывать о том, что должен быть соблюден зазор 3 мм. Замеры можно производить как при помощи рулетки, так и приложив брус напрямую к дверному проему, делая пометки карандашом.
- Далее, нужно подогнать петельный и притворный брус по высоте, с нижней части, до начала спиленного угла. При отсутствии порога, достаточно к высоте двери прибавить два зазора, 3 мм + 10-15 мм. После навешивания дверь должна закрываться достаточно плотно, без препятствий к открыванию, и не касаться пола.
- Как только все составляющие запилены, нужно переходить к сборке частей. Работать легче, положив их на пол. Для безопасности, сверло лучше использовать небольшого диаметра. Саморезы обязательно должны быть для дерева, прикручиваются они также под углом 45 градусов. Во время скрепления частей их надо плотно прижимать друг к другу, так как саморезы растягивают детали.
- После сборки, конструкцию необходимо примерить в дверной проем, если расчеты точны, она без проблем встанет в него.
Замеры должны быть проверены несколько раз. Если допущена ошибка и дверная коробка окажется маленькой для полотна, придется приобретать новый материал.
Как самому собрать дверную коробку со стыковкой 90
Самый простой вариант сборки, с которым справится новичок, также часто используется при работе с древесноволокнистыми материалами. Как осуществить сборку со стыковкой в 90 градусов поэтапно:
- Боковые балки подгоняются по высоте дверного проема, с учетом всех зазоров. Они будут доходить до самого верха дверного проема.
- Верхняя часть закрепляется между петельной и притворной, поэтому ее необходимо укоротить на столько, сколько составляет ширина обеих боковых брусов. После соединения, три части должны плотно входить в проем по ширине.
- После подготовки составляющих, можно переходить к сборке. Отверстия для саморезов делаются заранее, чтобы избежать трещин древесины, входить они должны с боков, под углом 90 градусов.
Сборка дверной коробки с порогом
Конструкции, оснащенные порогами, обычно устанавливаются при входе в дома, так как они сохраняют тепло и делают коробку более прочной. Несмотря на то, что добавляется новая деталь, сборка частей не составляет сложностей. Первые шаги идентичны тем, что выполняются во время установки коробок без порога. Притолока и боковые брусы могут быть установлены под углами 45 и 90 градусов. Порог всегда устанавливается под прямым углом. Пошаговая инструкция по сборке коробки с порогом:
- Брус порога необходимо запиливать ровно под прямым углом, соблюдая ширину, от одной боковой части, до второй, также можно ориентироваться на формулу: ширина двери + 6 мм зазора. Чтобы правильно определить высоту порога, необходимо конструкцию ставить в дверное полотно.
- Далее, нужно на притворном и петельном брусе аккуратно спилить упорную четверть, на высоту нижней доски, для плотного крепления порога. Замеры должны быть точно сняты, в противном случае можно просто испортить материал.
- Как только составляющие подготовлены, можно переходить к их соединению, также плотно стягивая, чтобы части не расползлись. При работе с входными дверями лучше использовать оцинкованные саморезы.
Шиповое соединение дверной коробки
Менее распространенный способ соединения деталей коробки, может быть осуществлен без использования саморезов, однако, для обеспечения прочности лучше всего использовать оцинкованные гвозди или специальный монтажный клей.
Принцип данного метода заключается в том, что на месте соединения составляющих, не важно, ставятся ли он под прямым углом или под 45 градусов, вырезаются шиповые соединения. Одна из деталей имеет само соединение (шипы), а вторая — выточенные под него пазы, в которые оно плотно вставляется.
Установка коробки в дверной проем
Данный этап лучше всего выполнять с помощником, так как дверной блок может быть тяжелым, особенно если дверь используется с внутренним наполнителем в виде плиты, что может привести к сложностям в работе. Конструкцию монтируют в дверной проем в несколько этапов:
- Конструкция вставляется в проем и закрепляется в нем при помощи клиньев. Затем, ее положение полностью выравнивается, чтобы она встала идеально относительно горизонтальной и вертикальной осей. Как только точное положение будет определено, в самом проеме и коробке просверливаются отверстия, для дюбелей.
- Когда конструкция будет плотно закреплена в проеме, можно приступать к подготовке двери к подвесу. В первую очередь, к ней прикручиваются петли, а вторая их часть закрепляется на петельном брусе. Главное — не ошибиться с высотой, так как дверь будет расположена не ровно. Если все сделано правильно, после того, как вы навесите полотно, будут соблюдены все зазоры.
- Затем, фиксируется коробка, выполнить это можно при помощи монтажной пены, также она используется при заполнении зазоров, допустимых между брусом и проемом.
- Как только работы будут выполнены, можно переходить к установке телескопических или простых наличников, обналичников и прочей фурнитуры.
Ошибки при установке и сборке дверной коробки
Не каждый может грамотно произвести установку и монтаж дверного блока, без совершения ошибок. Самые распространенные из них:
- Неправильно подобранные инструменты и саморезы, что может повредить материалы или сделать конструкцию непрочной. Например, двери из ДВП имеют волокнистую структуру и другую плотность, в отличие от ПВХ, значит и крепежи необходимо использовать разные.
- Недостаточное выравнивание двери по вертикали может привести к тому, что дверь будет самостоятельно открываться или закрываться.
- Невнимательность при соблюдении направления открывания дверей.
- Во время работы с монтажной пеной важно учитывать, что она имеет свойство расширяться, если нанести слишком большое количество, коробка может прогнуться.
Не стоит бояться задавать вопросы опытным установщикам, только мастер со стажем сможет дать правильные советы и предостеречь от возможных ошибок. При неправильном выполнений действий, приходится приобретать новый материал, что не со всем выгодно и занимает много времени.
размеры, сборка своими руками, инструкция для новичков
Завершающий этап ремонтных работ в жилых или коммерческих помещениях – установка межкомнатных дверей. Качественная сборка и установка коробки в соответствующий проем – залог надежного запирания полотна, правильная работа основных и вспомогательных механизмов.
Дверная коробка монтируется в стеновом проеме, поэтому является ключевой частью готовой конструкции, к которой на петли крепится полотно. Разберемся, как собрать дверную коробку своими руками без привлечения сторонних специалистов, следуя простой пошаговой инструкции.
Содержание статьи
Выбор размеров коробки
Коробки для межкомнатных дверей изготавливаются из надежных и практичных материалов – МДФ, ДСП и деревянных брусьев. Конструкция коробки состоит из нескольких функциональных элементов, поэтому для ее монтажа необходимо знать размеры всех составляющих.
Размеры дверной коробки межкомнатной двери определяются толщиной стен и размерами полотна двери:
- Для стен из кирпича толщиной в 7,5 см – коробка толщиной в 10,9 см;
- Для стен из деревянной брусчатки толщиной до 10 см – коробка толщиной в 12 см.
Толщина дверной коробки у зарубежных производителей может отличаться от указанных размеров, составляя:
- 8 см;
- 10 см;
- 12,5 см;
- 14,5 см;
- 18,5 см;
- 20,5 см.
Правильное соотношение параметров толщины коробки и стенового проема исключает возникновение нарушений при дальнейшем монтаже наличников. При широкой стене и узкой коробке, готовую конструкцию необходимо расширить при помощи деревянных планок или досок, установленных в специальные пазы.
Стандартно коробка для проема оснащается специальным вырезом, глубина которого равна ¼ толщине полотна двери.
Современные модели межкомнатных дверей могут иметь различные габариты, но стандартный размер – 80 см. Ширина дверной коробки представлена в двух диапазонах:
- Высота – 2 метра, ширина – от 60 до 80 см;
- Высота – 1,9 метров, ширина – от 55 до 90 см.
Готовые изделия бывают обычными и профильными, а ширина стандартных элементов может составлять от 1,5 до 4 см.
Инструменты и материалы для проведения работ
Установка дверной коробки проводится с использованием основного инструментария и необходимых материалов.
Для работы потребуется:
- Брусья и клинья деревянные.
- Электрическая фреза.
- Ножовка, оснащенная стуслом.
- Шуруповерт.
- Дрель.
- Саморезы, гвозди с небольшими шляпками.
- Уровень строительный.
- Монтажная пена.
- Строительный карандаш.
- Нож с тонким острым лезвием.
Для проведения монтажных работ помещение должно быть сухим и хорошо проветренным.
Коробка – конструкция рамного типа, состоящая из вертикальных направляющих – петлевого и притворного косяка. Брус петлевой принимает на себя нагрузку установленной двери.
Предварительные монтажные работы
Установка межкомнатных дверей своими руками выполняется после окончания работ по выравниванию стеновых поверхностей, монтажа напольной облицовки и прочих чистовых работ.
Готовые откосы должны быть проверены по вертикали в нескольких местах. При обнаружении разницы до 5 см, выполняется выравнивание откосов. Аналогично выполняется проверка горизонтальных перемычек. Между напольной поверхностью и дверью следует соблюсти технологический зазор в 15 мм.
Начинающим мастерам рекомендуется выбирать самую простую и доступную схему сборки коробки, предусматривающую сбор отдельных элементов под углом, составляющий 45 градусов.
Грамотная сборка дверной коробки определяет поэтапное проведение работ:
- Используя фрезу, выполняются небольшие углубления для петельных соединений в полотне двери. Расстояние от края полотна до края петель (сверху и снизу) должно составлять не менее 18 см.
- Откосы запиливаются под углом равным 45 градусам. Поверхности тщательно зачищаются и подравниваются, прикладываются к полотну и выполняются отметки, где будут размещены петли на косяке. Используя фрезу, выполняются углубления для шарниров двери.
- Готовые петли вкладываются в имеющиеся углубления в полотне, при помощи дрели проделываются отверстия под саморезные соединения. При этом рекомендуется выбирать сверло, диаметр которого равен диаметру саморезов. В завершении петли фиксируются к полотну двери.
Установка ручки и замка
Следующий этап работ – фиксация ручки и замка на дверь, которая выполняется после установки петель.
- Полотно переворачивают в горизонтальном направлении и на расстоянии от 85 до 118 см на стороне, противоположной от петель, просверливается углубление нужного диаметра для установки замка с защелкивающим механизмом.
- Замок вставляется в углубление, карандашом выполняется окантовка. Используя фрезу, выполняется еще одно углубление для крепления лицевой планки с задвижкой.
- В полотно вставляется задвижка, при этом ее корпус должен быть расположен на уровне торца двери.
- Далее на двери карандашом наносятся отметки под углубления для ручек, которые просверливаются дрелью.
- Замочная защелка монтируется в углубление с торцевой части и фиксируется саморезами.
В завершении устанавливаются ручки на саморезы и декоративные накладные элементы, используя простой шестигранный ключ.
Полная сборка и монтаж коробки в стеновой проем
На завершающем этапе выполняется полная сборка дверной коробки и монтаж ее в соответствующий стеновой проем.
- В поперечной коробке ножовкой выполняется обрезка концов под 45 градусным углом. Это обеспечит ровную и надежную стыковку всех элементов. При этом ширина проема должна превышать размеры полотна двери на 6 мм.
- Дрелью проделываются отверстия в срезах углового типа для правильного соединения коробки. Многие модели дверей, которые комплектуются наличниками и откосами, оснащаются специальными срезами и крепежными элементами. В таком случае нет необходимости в высверливании дополнительных отверстий.
- Далее откосы аккуратно укорачивают в соответствии с размерами готовой двери, соблюдая технологические зазоры между полом и нижней частью двери в 15 мм.
- Все элементы коробки складываются в конструкцию, имеющую форму буквы П на ровной поверхности и надежно соединяются саморезами.
- В пазах, которые предназначаются для монтажа шарнира, выполняется сквозное отверстие для фиксации собранной коробки к стеновой поверхности. Коробка фиксируется вверху проема на длинный саморез.
- Вертикальность расположения стойки, к которой фиксируются дверные петли, проверяется строительным уровнем. Коррекция выполняется при помощи клиньев, вбиваемых в паз между стойкой и откосом.
- Аналогичная процедура проводится со второй стойкой.
- Горизонтальное расположение перемычки конструкции должно быть параллельно напольной поверхности. Коррекция выполняется клиньями.
- После полной проверки положения коробки, конструкция надежно фиксируется снизу на саморезы.
- Далее рекомендуется выполнить навешивание двери, чтобы проверить правильность проведения работ.
Пошаговая инструкция по сборке и установке коробки предполагает еще один важный этап – навешивание полотна.
Навешивание полотна выполняется при помощи саморезов, при этом петли надежно скрывают фиксирующие элементы. При правильном навешивании не должно быть произвольного открывания/закрывания двери.
После надежной фиксации коробки и установки полотна, деревянные клинья удаляются из технологических зазоров, а имеющиеся щели заполняются монтажной пеной, предварительно закрыв все установленные элементы фурнитуры малярным скотчем.
Даже начинающий мастер при наличии необходимых инструментов может выполнить свой первый монтаж двери, будь то квартира, дом или баня. Главное, соблюдать все этапы работ и тщательно проверять правильность фиксации всех элементов конструкции.
пошаговый монтаж в домашних условиях
На чтение 8 мин Просмотров 16 Опубликовано Обновлено
Дверная коробка – рама, устанавливаемая в дверной проем. Может дополняться наличниками или доборными элементами, если глубина проема слишком велика. Коробка маскирует щели, технологические отверстия, а также обеспечивает плотное примыкание створки. Сделать коробку для межкомнатной двери и установить ее можно самостоятельно.
Комплектация дверной коробки
Дверная коробка без порога состоит из двух вертикальных и одной горизонтальной планкиДверная коробка в квартире обычно выполняется из бруса. Ее устройство и размеры зависят от величины проема, конструкции двери, других факторов. Комплектация включает:
- 2 вертикальные стойки и горизонтальную перекладину – это обязательные составляющие любой модели.
- Порог – обычно появляется на дверях, ведущих в туалет, ванную, кухню. Таким образом предупреждают растекание воды из прорванных коммуникаций, которые чаще случаются в нежилых комнатах.
- Наличники – декоративные элементы, которые маскируют монтажный шов.
- Фурнитуру – дверные ручки, петли, замки, доводчики. Часть элементов закрепляют на коробку, часть – на дверное полотно или на оба элемента.
Телескопическая коробка несколько отличается. В собранном виде она похожа на обычную, однако состоит из большего числа планок, которые соединяются друг с другом через пазы. Такую конструкцию можно установить на любой дверной проем – слишком глубокий, с неровными стенами, слишком широкий.
Выбор материала
Древесина хвойных пород легко поддается обработкеДля дверной коробки используют следующие материалы:
- МДФ – или древесная фибра. Материал легкий, устойчивый к действию влаги, достаточно прочный, рассчитан на крепление створки из дерева, МДФ, стекла, пластика.
- Дерево – самый популярный материал, поскольку всегда доступен и легко поддается обработке. Для межкомнатных дверей берут древесину средней и низкой плотности. Чаще всего это сосна, так как она доступна по цене. Для входных блоков выбирают твердые породы – дуб, лиственницу, граб. Такой материал не боится воды и очень долго служит.
- Металл – оцинкованная сталь, крайне редко нержавеющая. Коробку делают методом гиба стального листа соответствующей толщины. Рама рассчитана на самые тяжелые створки. Для межкомнатных блоков используется редко.
ДСП использовать нежелательно. Материал слабо устойчив к действию воды и пара, плохо держит крепеж из-за низкой плотности. ДСП дешевле чем дерево или МДФ, однако совокупная площадь элементов коробки невелика, так что такая экономия себя не оправдывает.
Чаще всего в комплектацию двери входят все элементы, в том числе стойки и перекладины для коробки.
Разметка и замеры
Замеры для дверной коробкиИзготовление дверной коробки начинается с замеров. Делают это двумя способами: измеряют проем или уже приобретенную дверь.
В первом случае выполняют замеры высоты и ширины проема. Измерения делают в нескольких местах с шагом в 50–60 см. Важно замерить диагональ проема. Таким образом оценивают ровность откосов и контролируют правильность изготовления рамы.
Замерить нужно и толщину короба, так как он зависит от толщины стены.
Во втором случае замеряют боковые стороны дверного полотна и прибавляют к результатам 5 см. Затем измеряют порог, если он предполагается, оставляя место под припуски.
Варианты сборки дверной коробки
Монтаж изделия сводится к сооружению рамной конструкции прямоугольной формы. Она может составлять замкнутый контур, если оборудуется порожком, или разомкнутой.
Дверная коробка своими руками собирается несколькими методами. Выбирают способ исходя из опыта и характера используемого материала.
Багетное соединение
Шиповое соединение деталейНадежный метод сборки. Торцы вертикальных стоек и перекладины надпиливают под 45 градусов. Когда элементы совмещают, их скрепляют саморезами или шурупами. Так как коробка вставляется в проем, крепеж остается невидимым.
Минус такого решения – ограниченность в выборе материала. Раму из МДФ собирать так не стоит. Со временем кромки разлохмачиваются, на стыках появляются трещины и сколы.
Шиповое соединение
Куда более прочный, хотя и сложный метод сборки – соединение на шип. В этом случае на перекладине выпиливают шипы для вставки, а на торцах стоек – пазы для них. Такое соединение настолько прочное, что не нуждается в дополнительном крепеже. Однако для продления службы коробки скрепляют саморезами. Шляпки гвоздей после монтажа оклеивают пленкой под цвет древесины.
Сборка своими руками очень сложна. Требуется опыт и специальный инструмент, без которого справиться нельзя.
Под прямым углом
Простейший способ, хотя и не слишком эстетичный. В этом случае подпиливают только перекладину так, чтобы она вставлялась между вертикальными стойками. Фиксируется притолока саморезами. Крепеж оказывается с наружной стороны рамы и остается невидимым.
Необходимые инструменты для работы
Инструменты для изготовления дверной коробки из дерева или металлаЧтобы собрать дверную деревянную коробку правильно, нужны следующие инструменты:
- строительный нож, ножовка по дереву, молоток;
- шуруповерт для крепежа;
- рубанок и стамески для коррекции планок;
- карандаш, лазерный или водяной уровень, рулетка, угольник и другие измерительные инструменты;
- монтажная пена, жидкие гвозди.
Могут потребоваться дополнительные инструменты и материалы, например, уплотнительная лента для улучшения звуко- и теплоизоляции.
Инструкция по сборке дверной коробки своими руками
Установка, крепление, навешивание петель и наличников для дверной коробкиИзготовление коробки зависит от ее конструкции. Однако общая схема проста.
- Выбирают два бруса равные по высоте проема – стойки, и 2 доски равные ширине проема – притолок и порожек.
- Со стороны, с которой будет открываться дверь, делают зазор. Если створка будет открываться в обе стороны, зазоры делают с обеих сторон.
- На поперечных элементах проделывают такой же паз.
Готовые детали окрашивают или обрабатывают морилкой. Цвет подбирают под цвет дверного полотна. Такую операцию можно выполнить и после монтажа.
Без порога
Установка дверной коробки без порогаКонструкция без порога носит название разомкнутой. Собирать и установить ее чуть проще.
- Собирают коробку для межкомнатной двери на полу, на ровном месте. Детали раскладывают по чертежу и выравнивают форму. При необходимости подгоняют размеры брусков.
- Размечают места соединений – под углом, в четверть. По отметкам делают надпилы ножовкой, а затем стамеской удаляют лишний материал. Срез стыка обрабатывают напильником или шлифмашинкой.
- Стойки размещают под фурнитуру – дверные петли, ответная часть замка, доводчика.
- По отметкам делают выборку материала стамеской. Петли нового типа, «бабочка», например, устанавливают на коробе уже при монтаже дверного полотна.
- Части короба вновь соединяют и скрепляют. По каждой линии должно быть не менее 2 креплений. Готовую коробку вновь проверяют на вертикальность.
- Конструкция устанавливается в дверной проем и выравнивается. С помощью угольника и отвеса проверяют вертикальность установки. Корректируют положение с помощью деревянных клиньев.
- Выполнят предварительную навеску дверного полотна. Для этого крепят на стойке петли, а затем навешивают дверь. Проверяют вертикальность установки и легкость открывания. Если створка двигается с трудом, с помощью клиньев корректируют положение коробки до тех пор, пока не добиваются свободного открывания.
- Дверное полотно снимают. Деревянную коробку намертво закрепляют. Зазоры между рамой и стенкой запенивают монтажной пеной.
- После высыхания остатки пены срезают. Чтобы замаскировать технические щели, устанавливают наличники.
Если проем слишком глубокий, дверная коробка включает доборы.
Полезным дополнением к межкомнатной двери выступает упор. Это невысокий штырь с резиновой насадкой. Упор не позволяет открывающейся двери ударяться об стену. Это предупреждает порчу и дверного полотна, и отделки. Для упора в полу высверливают отверстие, затем в него нужно поставить крепежный винт, на него навинтить упор.
С порогом
Порог делается в кухне и ванной для предотвращения растекания водыМонтаж дверного блока с порожком мало чем отличается от обычной установки. Порог – брусок равный по ширине величине проема. Его прикрепляют к общей конструкции и во время установки фиксируют на пол после окончательного выравнивания дверной рамы.
Можно поступить иначе: купить порожек в магазине и установить его отдельно. Готовые модели можно в любой момент подгонять по размеру. Закрепляют их на саморезы или клей. Популярностью пользуются алюминиевые порожки: они устойчивы к действию воды и износу.
Типичные ошибки
Установка дверной коробки кажется весьма простой работой. На деле здесь есть немало тонкостей. Новички зачастую делают ошибки, что позднее приводит к трудностям с открыванием дверей и быстрому износу изделия.
- Между стеной и коробкой должны оставаться технические зазоры. Если таковых не будет, заделать щель между стеной и рамой не удастся.
- При монтаже стойки в замковой части слишком сильно утягивают верхний или нижний край. При этом полотно перестает плотно прилегать к коробу, что приводит к уменьшению тепло- и звукоизоляции.
- Нельзя закреплять коробку, пока не будет выполнена проверка створки. Только когда дверное полотно сохраняет полную вертикальность в закрытом и открытом состоянии, можно фиксировать раму.
- Главное условие – коробка должна быть прочно закреплена. В противном случае под весом двери она «разбалтывается».
- Отверстия для крепежа нужно делать на определенном расстоянии от края стойки или перекладины. В противном случае возможно откалывание фрагментов стены.
Установка дверной коробки – важнейшая часть монтажа двери. Положение коробки обеспечивает вертикальность створки и свободу открывания. Относительно простые модели можно изготовить и установить своими руками, если соблюдать инструкцию.
Дверная коробка: снятие размеров, распил, сборка
Наверное каждый, кто сталкивался с ремонтом, испытывал необходимость в замене дверей как межкомнатных, так и входных. Только на первый взгляд эта процедура может показаться простой и не требующих особых умений. Все подробности в нашей статье.
В один прекрасный день вы в своей квартире задумали поменять двери, скажем, в туалете и ванной. Отлично. Вы идете на рынок или в специализированный магазин, выбираете то, что вам приглянулось. К дверному полотну прилагается ряд деталей, без которых просто немыслимо обойтись. Это дверные петли, врезной замок, ручка, дверная коробка. Именно о последней и пойдет речь в данной статье.
Как правильно собрать дверную коробку в домашних условиях
Как правило, дверную коробку вы приобретаете в разобранном виде, т.е. по частям. В нее входят две боковые поперечины, верхняя перекладина и порог. Чтобы приступить непосредственно к самой сборке, Вам необходимо произвести некоторые подготовительные работы. Вообще, подготовительный этап самый важный. Если его должным образом провести, он всегда поможет избежать ошибок, которые в этом деле допускаются даже опытными мастерами. Перед тем, как приступить к работе, нужно подготовить рабочее место. Ведь нужно учитывать тот факт, что вам придется делать прирезки. А это довольно пыльная работенка. Далее необходимо подготовить набор инструментов, который будем необходим в процессе сборки. Что же вам понадобиться? Стандартный перечень включает в себя следующее: рулетка, карандаш, стусло и ножовка или торцовочный станок, отвертка либо шуроповерт, саморезы. Размер дверной коробки будет зависеть напрямую от размера дверного полотна. Первая ошибка, с которой можно столкнуться, это прирезать коробку в размер двери. Нужно всегда учитывать тот факт, что помимо самой двери, к коробке крепятся еще и навесные петли. А это тоже занимает некоторое пространство. Если этого заранее не предусмотреть, ваша дверь будет с огромным трудом закрываться, если вообще будет закрываться. Итак, все вами учтено. Приступаем к снятию размеров. При помощи рулетки замеряем высоту двери. Исходим из того, что двери могут быть по высоте и ширине абсолютно разными.
Способы запилов частей брусов коробки
Составные части дверной коробки могут крепиться друг другу несколькими вариантами. Их всего два. А именно:
- Все стыки осуществляются под углом в 45 градусов
- Все стыки осуществляются под углом в 90 градусов
Это мало принципиально и никакой разницы в качестве вы не почувствуете. Конечно зарезать брус под прямым углом гораздо проще. Однако могу сказать одно: более эстетично смотрится коробка, зарезанная под углом в 45 градусов.
- размеры дверной коробки
- как собрать дверную коробку этапы 1-4
- как собрать дверную коробку 5-7
- сборка дверной коробки с притолокой
Крепление частей между собой при сборке дверной коробки
Алгоритм сборки дверной коробки довольно прост. Берем оба вертикальных бруса. Нужно помнить о необходимости оставить зазор между коробкой и дверью. Как правило, зазор составляет 3-4 мм. Исходя из этого делаем соответствующие метки карандашом. Не забываем о том, что метки делаем на внутренней части бруса. Никогда не торопитесь с отрезанием. Всегда несколько раз все перепроверьте. На своей практике сталкивался с такими ошибками, когда торопился с отрезанием бруса. Это приводит к тому, что вам придется ехать за дополнительным горизонтальным брусом. А это и время, и деньги.
Итак, с размерами дверной коробки определились, и все по меткам отпилили. Теперь приступаем с соединению частей. Для этого можно также использовать несколько вариантов:
- При помощи деревянных шиповых соединений. Они в свою очередь так же бывают различных видов (сквозные и несквозные, одинарные, шканты (наподобие дюбеля), вставной плоский сквозной и несквозной, пр.)
- При помощи саморезов.
Современная практика говорит о том, что первый вариант куда сложнее в исполнении. Соединение при помощи саморезов не хуже, а значит не стоит усложнять процесс на ровном месте. Хотя выбор остается всегда за самим сборщиком.
Соединяем вместе одну из горизонтальных и вертикальную части. Чтобы избежать раскола бруса при закручивании в него самореза, желательно проделать тонким сверлом отверстие. Обычно каждый стык крепиться на два самореза. Когда все четыре части соединены между собой, можно считать, что сбор дверной коробки практически окончен. После этого нужно еще раз все проверить. Для этого нужно уложит собранную коробку на ровную поверхность. Потом взять дверное полотно и положить сверху, т.е. проверить входит ли дверь в коробку. Если все правильно входит, при этом остались небольшие зазоры, которые мы предусмотрели, дело сделано.
Мы собрали так называемую закрытую дверную коробку, т.е. ограниченную с четырех сторон. Так делается не всегда. Бывают помещения, где нет необходимости делать порог. Тогда коробка собирается с двух вертикальных и одной верхней (притолоки) частей. Получается коробка в виде буквы (П). Принцип снятия размеров, распила, сборки остается прежним.
Подводя итог, можно отметить следующее: нет ничего сложного в процессе сборки дверной коробки. Это может сделать любой человек, даже мало знакомый со всеми премудростями строительного ремесла. Однако нужно не забывать о возможных ошибках. Если все делать не спеша и аккуратно, следовать нашим советам, — у вас непременно все получится в лучшем виде. Дерзайте и удачи вам.
Как собрать дверную коробку под 45 градусов. Как правильно собрать коробку для межкомнатной двери самостоятельно
Изготовление дверной коробки самостоятельно
Часто бывает, что дверная коробка не входит в комплект с дверью, или входит, но продается в разобранном виде, или же она есть в наличии, но не подходит под ваш дверной проем — не все виды дверных коробок подходят для проемов, для которых они предназначены. Или же вы просто уверены в своих силах, и хотите сэкономить, изготовив коробку своими руками. И в этом нет ничего невозможного. Но все же перед тем, как сделать дверную коробку, проверьте наличие необходимых инструментов и материалов, о которых пойдет речь ниже.
Из чего состоит дверная коробка
Все виды дверных коробок имеют в основе четыре профильных бруска — два длинных, расположенных вертикально и составляющих боковые части коробки, и два коротких поперечных, которые являются соответственно верхней и нижней частями коробки.
Снятие размеров будущей дверной коробки
Бруски для коробки можно купить готовые или сделать самому, все зависит от вашего желания, навыков и имеющегося инструмента.
Если вы делаете коробку «с нуля», начать нужно со снятия размеров. Сделать это можно двумя способами:
Если вы берете за основу устанавливаемую дверь, измерьте сначала ее боковые стороны, добавляя по 5 см к каждой. Затем измерьте верхнюю и нижнюю части двери, также прибавляя по 5 см. Просчитайте полученные результаты и можете начинать распил.
Подготовка к распилу и изготовление деталей
Начать лучше с брусков, предназначенных для боковых частей дверной коробки. Подготовленные бруски кладут на пол, на одном уровне, так, чтобы пазы находились сверху. На них нужно отметить верхнюю и нижнюю границы двери, учитывая толщину порога. Затем прикладывают бруски, предназначенные для верхней и нижней части двери, на которых также делают отметки будущей линии распила.
После этого можно нарезать заготовки под коробку. Сначала во избежание ошибок желательно отрезать заготовки с некоторым запасом. После этого их следует примерить, и только потом сделать более точную подгонку деталей.
Изготовление и стыковка дверной коробки
Состыковать боковые и поперечные детали коробки можно двумя способами:
- под углом в 90 градусов;
- под углом в 45 градусов.
Второй способ сложнее, он требует определенных навыков и предельной аккуратности. А менее искушенным в подобных делах лучше воспользоваться первым способом, и обрезать боковые детали под углом в 90 градусов.
Подготовка боковых поверхностей
Затем на одной из боковых деталей, которая будет располагаться со стороны петель, нужно обозначить места, где будут находиться петли. Делают это, приложив эту деталь к боковой поверхности двери. Глубину паза делают равной толщине створки петли. Углубления под петли вырезают очень аккуратно, чтобы не повредить полотно двери. Своими руками это несложно выполнить при помощи стамески и молотка, в то время как специалисты обычно используют электрическую фрезу.
Далее необходимо вложить петли в подготовленные для них таким образом углубления, и при помощи дрели сделать на боковой поверхности углубления для саморезов. Причем диаметр углублений должен быть меньше, чем диаметр саморезов, которые будут здесь находиться. Затем при помощи саморезов петли прикрепляются к полотну двери.
На другой боковой поверхности двери устанавливают замок-защелку.
Сборка коробки своими руками
Собирать детали дверной коробки в единое целое своими руками удобнее всего на полу, застеленном картоном или бумагой. Собственно сборка коробки состоит в соединении подготовленных деталей саморезами. Но сначала необходимо предельно тщательно совместить один из углов коробки, и просверлить пару отверстий со стороны поперечной планки в торец продольной детали дрелью или шуруповертом. Это делается для предотвращения порчи дверного полотна саморезами в дальнейшем. Дальше в подготовленные отверстия завинчиваются саморезы. Таким образом во все углы коробки вкручивают по два самореза (под прямым углом).
Установка дверной коробки своими руками
После того, как изготовление и сборка коробки завершена, можно начинать ее монтаж в дверной проем, для чего вам сперва понадобится «примерка» сделанной коробки. Проверьте вертикальность коробки при помощи отвеса, и перпендикулярность всех углов. Вполне возможно, что потребуется сначала выполнить подгонку коробки, которая состоит в ликвидации просветов при помощи клиньев или монтажной пены.
После этого коробка прикрепляется к откосам при помощи дюбелей. Не забудьте удостовериться, что нигде не видны «подгоночные» клинья и рейки. Лишь после этого можно считать процесс изготовления дверной коробки законченным. Дальше остается только навесить полотно двери на петли и прикрепить наличники.
Вообще, сборка дверной коробки своими руками не такое простое дело, как может показаться. Все-таки для этого нужно обладать некоторым опытом. Но если вы все же полны решимости, для начала следует хорошо изучить теорию этого процесса, и изучить полезные фото-и видеоматериалы по нему.
Как сделать дверную коробку: процесс своими руками
Дверная коробка – это в основном рама, которая содержит в себе бруски и фальцы. Укрепляют коробку специальными болтами или используют накладки из стали.
Дверную коробку можно собрать своими руками, используя деревянные бруски и крепежные элементы.
Чтобы предотвратить неровности во время постановки коробки, используйте отвес и уровень. В случае каменных стен коробка крепится на деревянные пробки с применением гвоздей. Если в состав стен входят плиты, конструкции будут держаться только на скобах.
Самостоятельное изготовление коробки
Для того чтобы понять, как сделать дверную коробку своими руками, надо ознакомиться с некоторыми моментами самой работы.
Для начала снимаются размеры. Существует 2 способа снятия данных:
- по дверному проему;
- по установленной двери.
Например, расчет данных по действующей двери. Сначала измеряют боковые стороны, приплюсовывают по 5 см со всех сторон двери. Далее замеряете порог и верхнюю часть системы, оставляя место для припуска. Затем просчитывают метраж и начинают распиловку.
Далее складывают бруски на пол, они понадобятся при постановке боковой коробки. Лежать они должны по уровню, пазами сверху. Отмечают верхние и нижние границы будущей двери, прибавляют при этом толщину порога. Из брусков, которые прикладываются к порогу и перекладине, делаются определенные засечки, чтобы была видна линия распиливания.
Схема снятия замеров дверного проема.
Затем распиливают подготовленные материалы для сбора. После нарезки заготовок необходимо их подогнать под соответствующий размер. В одной из заготовок делают прорезь будущих петель, применяя стамеску и молоток. Прежде чем начинать делать, надо знать необходимую сторону открывания конструкции.
Чтобы продолжить самостоятельную сборку, необходимо использовать саморезы и гвозди для прочности будущей конструкции. Далее навешивают петли и укрепляют дверной проем. Выравнивают зазоры.
Необходимые инструменты, которые помогут собрать дверь, это:
Пользуйтесь комплектом отверток разных конфигураций, применяйте плоскогубцы, лом, гвоздодеры маленького размера.
Для пробития отверстия в бетоне необходим перфоратор. Подготовить материалы для двери сможет торцовочная пила. Достаточно много делает и электрический фрезер. С помощью него за короткий промежуток времени изготавливают отверстия необходимых замков и петель. Если имеется большой набор фрез, то еще лучше. Если необходимо с особым качеством сделать дверную коробку, нужен будет и деревообрабатывающий станок.
Некоторые особенности
Устройство дверной коробки.
Сам процесс выглядит примерно так. Вначале приготавливается гладкая доска толщиной 5 см (может несколько), из нее делают 4 одинаковых отрезка. 2 из них равны длине, 2, соответственно, ширине проема.
При этом отрезки имеют обработку только 3-х сторон – сделать их необходимо очень гладкими, 4-ая помещается возле стены. Ориентируясь на ширину доски, делают разрез, в который будут вставляться дверь.
Разрез делают только на той стороне, где она открывается. Если планируется двойная дверь, разрезы делаются со всех сторон. Проще делать разрезы на станке, где возможно приподнять стол и отрегулировать необходимую длину. Существующий материал обрезается до необходимой длины, обрабатываются все торцы.
Когда приготовили все необходимые заготовки, приступают к обрабатыванию поперечных отрезков. Продольные отсеки стандартных дверей имеют 193 см, поперечные – 90 см. Разрез на торце дверной коробки в глубину должен составлять 1,5 см, ширина – 5 см.
Вначале необходимо присоединить все обвязки, находящиеся сверху и сбоку, а только затем начинают устанавливать саму коробку в дверной проем. При этом обязательно должно быть пространство между дверью и стенкой в 2 см. В дальнейшем оно используется теплоизоляции.
Одним из важных элементов в закреплении двери является запил. Существует 2 варианта подпиливания коробок: 45° и 90°.
Схема запила дверной коробки.
Запил коробки в 45° происходит следующим образом:
- берутся доски;
- ставятся необходимые отметки с внутренней стороны, ненужное убирается;
- угол отпиливания внутри должен соответствовать 135°, а снаружи 45°, по длине вертикальные коробки должны быть стандартными и одинаковыми.
Точно так же делается и с горизонтальными маленькими брусьями. Отличается только тем, что надо отпиливать со всех сторон. Самое главное – не ошибаться в размерах.
Чтобы собрать коробку в 90°, размещают готовые части будущей двери на ровной поверхности. Уголки аккуратно соединяют при помощи саморезов, вкручивая 2 самореза во все углы (под прямым углом).
Чтобы дверная коробка держалась в необходимом положении, возможно использование нескольких методов:
В проем двери вставляют коробку и правильно устанавливают по центру. В конце всех работ обязательно проверить, нет ли щелей, перекосов и других неровностей. Если есть необходимость, использовать уплотнение.
Для того чтобы коробка закрепилась качественно в тех местах, где происходит соприкосновение со стеной, подкладывают уплотнитель.
В конце всех дополнительных операций проверяют перпендикулярность элементов сбоку.
Конечно, если использовать все специализированные инструменты и помощников, которые смогут подать детали при необходимости, сделать самостоятельно дверь будет достаточно просто. Поэтому выбирайте тот вариант, который приемлем именно вам. Удачи!
Собираем и устанавливаем дверную коробку своими руками
В большинстве случаев дверной короб идёт уже в собранном виде совместно с дверью. Но часто можно повстречать изделие из разных составных частей, особенно если нужно собрать конструкцию под нестандартный дверной проём. Сам процесс сборки и установки такого устройства достаточно сложный, особенно если нет хотя бы минимальных познаний и навыков в столярном деле.
Но для человека нет ничего невозможного, и поэтому он в состоянии собрать дверную коробку своими руками. Естественно, для этого понадобится приложить немало усилий для проведения правильных замеров и обработки материала. Но если придерживаться последовательного алгоритма выполнения работ, всё можно выполнить в короткие сроки, экономя как время, так и денежные средства.
Для чего нужна дверная коробка?
Под дверной коробкой подразумевается особый элемент . используемый в оформлении проёма двери, который по своей сути выступает в роли несущей конструкции, на которую навешивается полотно. Она по своей форме повторяет контур дверного проёма, обрамляя его внутреннюю часть. Именно на неё навешиваются петли, на которых будет открываться или закрываться дверное полотно. Без дверного короба попросту не удастся установить саму дверь.
В состав короба входят несколько основных элементов: боковые рамы, верхняя поперчена и порожек. В случае необходимости комплект может дополняться доборами. Но для полного осознания последовательности проведения всех работ своими руками, нужно рассмотреть все этапы начиная с выбора подходящего материала и заканчивая монтажом готовой коробки в дверном проёме. Но давайте обо всём по порядку.
Материал для изготовления дверной коробки
Если домовладельцем было принято решение самостоятельно собрать и установить дверной короб, то для начала необходимо подобрать качественный материал . При этом выбор должен основываться на параметрах веса и размерах полотна, так как вся нагрузка от него пойдёт на дверную раму. При этом популярными для сборки дверного короба считаются следующие материалы:
- древесина;
- металлические уголки;
- готовые боковины из МДФ.
Наибольшей популярностью пользуется коробка из дерева . которую легко можно сделать самостоятельно. При этом подбор подходящих брусков обычно не создаёт особых проблем. На строительном рынке есть уже подготовленные заготовки, из которых можно быстро сконструировать обрамление для дверного проёма своими руками. Всё, что нужно – выполнить подгонку по требуемым размерам и соединить составные элементы в единую конструкцию.
Дерево – прочный, практичный и самое главное экологически чистый материал. Оно достаточно легко поддаётся обработке. В большинстве случаев для сборки дверного короба своими руками используют сосну, но из-за своей сравнительной мягкости она не обладает высокой прочностью. Поэтому для входной двери, лучше использовать более твёрдые сорта древесины, такие как дуб.
Если рассматривать МДФ в качестве материала для дверной коробки, то его использование целесообразно только в проёмах между комнатами с низким уровнем влажности. Металлические конструкции лидируют по своей прочности, но для работы с ними потребуется сварочный аппарат, да и внешне они выглядят не совсем эстетично.
Набор инструментов для самостоятельной сборки
Для получения качественного результата важно подготовить инструмент в соответствии со следующим перечнем:
- ножовка по дереву и стусло для порезки деталей под правильным углом;
- электрический шуруповёрт или набор отвёрток;
- стамеска для выборки фасок под дверные навесы;
- дрель с функцией отбоя для крепления коробки к стене;
- строительный молоток, водяной уровень и простой карандаш;
- баллон монтажной пены, гвозди, клинья и крепёж.
Предварительный подготовительный этап
На полотне двери электрической фрезой или стамеской выбираются фаски для установки навесов. Важно соблюсти минимальное расстояние от крайней верхней и нижней части полотна до петли, которое должно составлять 200 мм.
На следующем этапе строго под углом в 45 градусов обрезаются откосы. Затем подготовленная деталь прикладывается к дверному полотну, и намечаются места крепления навесов на косяке. Опять же при помощи стамески или её электрического заменителя делаются углубления по размерам петель.
В полученные углубления вкладываются соответствующие половинки петель . которые крепятся саморезами при помощи шуруповёрта. Но предварительно проделываются отверстия, чтобы не допустить растрескивания древесины. Важно чтобы диаметр сверла был немного меньше толщины самореза.
Сборка и монтаж коробки своими руками
Следующим этапом самостоятельного проведения работ является сборка дверной коробки, которая предусматривает определённую последовательность действий .
Концы верхней поперечины дверной коробки, в соответствии с размерами полотна, обрезаются под углом в 45 градусов.
Если рассматривать, как устанавливать дверную коробку в деревянной постройке, то здесь есть свои нюансы. В первую очередь нужно предусмотреть съёмные обсадные бруски со стороны ручки, благодаря которым можно увеличивать ширину конструкции. Это в первую очередь обусловлено усадкой древесины после возведения дома на протяжении 6 лет.
Установка замкового механизма с защёлкой
Крепление дверной ручки – этап достаточно важный, так как от этого будет зависеть удобство использования двери по прямому её предназначению.
Дверь улаживается в горизонтальном положении и на расстоянии 100-120 см от низа на стороне противоположной от навесов, коронкой соответствующего диаметра высверливается отверстие под защёлку.
В завершение также при помощи саморезов закрепляются ручки и декоративные специальные накладки. Их крепление выполняется специальными шестигранниками.
Навешивание дверного полотна
На следующем этапе полотно навешивается на петли . закреплённые на дверной коробке.
В заключение коробка надёжно фиксируется при помощи деревянных клиньев . а запорная планка под защёлку, устанавливается на своё место, тем самым скрывая место крепления конструкции к стене.
Заполнение монтажных зазоров пеной
Чтобы не допустить проникновение сквозняков в помещение через щели между коробкой и стеной, а также более надёжно зафиксировать дверную конструкцию все зазоры заполняются монтажной пеной .
С помощью малярного скотча для предотвращения попадания пены закрываются лицевые планки.
Установка декоративных наличников
Финишным этапом монтажа дверного короба является его декоративная отделка при помощи наличников.
При наличии минимального комплекта инструментов, расходных материалов, а основное желания каждый сможет своими руками собрать и установить дверную коробку. При этом все работы займут всего несколько часов . Главное, контролировать установку короба в соответствии с водяным уровнем и строительным отвесом.
Забаранков Станислав Егорович
Дверь является обычным атрибутом любого жилого либо нежилого помещения, на которое особенно никто не обращает внимания. Но если возникает необходимость собрать дверную коробку своими руками, то эта конструкция не покажется простой. Существуют технология, особенности и ряд секретов, которые необходимо знать, чтобы установить двери.
Дверь и её комплектующие
Перед тем как приступить к установке двери, необходимо знать, что входит в комплект. Независимо от модификации, способа крепления, формы двери состоят из следующих элементов:
- дверное полотно;
- балки для устройства коробки;
- наличники;
- доборный брус для достижения необходимого утолщения коробки;
- фурнитура (запорные устройства, ручки, петли).
Инструмент для работы
Правильная установка дверной коробки потребует наличие инструмента и оборудования. Для проведения работ потребуются:
- рулетка, строительный уровень, карандаш;
- стамески для врезки петель и запорных устройств;
- монтажная пена;
- герметик под цвет дерева, чтобы скрыть при необходимости недочёты;
- перфоратор или дрель, шуруповёрт, фрезер;
- канцелярский нож, ножовка, молоток;
- стусло — приспособление для резки под разными углами.
Перечисленный список инструмента является стандартным, но не исчерпывающим. Многое зависит от материала стен, где устанавливается дверь и иных индивидуальных особенностей помещения, дверей и её конструкции.
Для точного реза углов лучше использовать электрическую торцовочную пилу. Она позволяет делать рез ровным, без погрешностей, чего нельзя ожидать от стусла. Если планируется разовое использование, то стусло идеально подойдёт, но для частого и профессионального использования электрическая пила станет необходимостью.
Разметка и замеры
Чтобы сборка конструкции была безошибочной, а результат стал идеальным, необходимо сделать чертёж и определить размеры проёма, а также осуществить разметку элементов двери.
Первоначально необходимо демонтировать старую дверь и замерить проём для новой конструкции. Если окажется, что проём меньше, то его нужно будет расширять. Когда проём больше, это не так страшно, если превышение позволит заполнить пустоту пеной, а также оформить дверной проём доборами и наличниками.
Двери имеют разные размеры и составляют по высоте 2 метра, а в ширину могут быть 60, 70, 80 и 90 см. Бруски коробки имеют свои размеры. Ширина бруска, как правило, составляет 7 см, а его толщина 2,5−3 см. Встречаются коробки с другими размерами, но технология их установки аналогична стандартным дверям, поэтому сборка дверной коробки осуществляется лишь с учётом индивидуальных размеров.
Распил балок должен начинаться с точных замеров. Важным правилом независимо от параметров конструкции двери являются следующее:
- между коробкой и проёмом в идеале должно быть не менее 3 см;
- технологический зазор по периметру между полотном и коробкой должен составлять не менее 3 мм.
Следует выдержать зазор в нижней части двери между полотном и полом который должен быть не менее 5 мм. Необходимо учесть дальнейший размер собираемой коробки, если планируется устройство порога.
Сборка коробки
Перед тем как собрать коробку, необходимо разложить элементы на полу или другой горизонтальной поверхности. Чтобы не поцарапать бруски, необходимо подстелить под них бумагу, картон и т. п.
Существует несколько видов соединений брусков коробки. Дорогие модели дверей идут уже с готовыми пазами, что позволяет их только соединить. Самостоятельная резка может быть под углами 45 или 90 градусов. В первом случае применяется стусло или электрическая торцовочная пила. Соединение в 90 градусов является самым простым способом. На верхней планке производится срез выступающей части под размер вертикальных брусков, после чего они вплотную соединяются. Неважно, каким способом сделано соединение , главное, чтобы между вертикальными и горизонтальной частями получился прямой угол 90 градусов.
После подгонки детали можно соединять. Идеальным вариантом крепления являются саморезы. Предварительно просверливается отверстие, а потом закручивается саморез. На каждую сторону нужно по два самореза, что обеспечит неподвижность соединительных частей при монтаже коробки. Просверливание отверстий позволит избежать растрескивания дерева. Необходимо, чтобы в месте соединения деталей внешняя и внутренняя часть брусков были вровень. Любое отклонение станет ошибкой в сборке дверной конструкции.
В некоторых случаях встаёт вопрос о том, как правильно собрать дверную коробку с порогом. Для этого снизу конструкции используется брусок, который может быть закреплён аналогичным образом, что и верхняя поперечина. Главное — учесть размеры дверного полотна и выдержать технологические зазоры.
Крепление дверных петель
Сборка коробки межкомнатной двери предполагает крепление петель, поэтому необходимо предварительно сделать подгонку. Для этого каркас укладывается на пол и выравнивается. На вертикальных брусках сверху и снизу отмечается по 20 см. На этом расстоянии крепятся петли. Если используются петли-бабочки, то после подгонки они крепятся на саморезы, а после снимаются. В случае с врезными петлями потребуются пазы, которые врезаются стамеской или фрезером, а далее подготавливаются отверстия под саморезы.
Установка в проём
Перед тем как установить дверную коробку, необходимо воспользоваться строительным уровнем, чтобы поставить конструкцию ровно по горизонтали и вертикали. Полотно при креплении коробки не навешивается. Работу производить лучше с помощником, но при отсутствии такого можно справиться самостоятельно.
Заранее нужно приготовить деревянные клинья разных размеров. Когда конструкция вставлена на место и выровнена по уровню, она жёстко фиксируется распорными клиньями.
Для создания крепости конструкции необходимо её закрепить к стене анкерными болтами. Отверстия в брусках делаются сверлом по дереву, чтобы не испортить внешний вид. Далее перфоратором просверливаются отверстия в стене. Если дверь устанавливается в деревянном доме, то коробку можно прикрутить саморезами. Чтобы сделать дверную коробку и не испортить её внешнего вида, места под анкера устанавливают за петлями и ответной планкой замка, которые в дальнейшем скроют эти отверстия. При затягивании необходимо соблюдать аккуратность, чтобы не перетягивать бруски.
Когда дверной каркас полностью установлен и закреплён, на него навешивается полотно , на котором заранее прикручиваются петли. Проверяется открытие и закрытие двери, прилегание к брускам по всему периметру. Если отклонений нет, промежуток между брусками и стеной заполняется монтажной пеной. Полностью всю полость запенивать нежелательно, рекомендуется небольшими участками в два этапа.
Наличники и замки
Если толщина стены больше 7 см, то для утолщения необходимо установить доборы. Для их крепления в брусках имеются специальные пазы. Пустота между доборами и стеной частями заполняется пеной, которая надёжно держит их на своём месте. После производится разметка, распил, подгонка и установка наличников.
Перед установкой ручек делается разметка на полотне, после чего с помощью сверла или фрезы вырезаются отверстия. На коробке устанавливается ответная планка, куда защёлкивается язычок замка. Для этого при закрытой двери отмечается место установки. Далее проделывается отверстие, и устанавливается планка.
Для устранения недочётов есть несколько рекомендаций:
- швы и стыки, которые в результате получились с изъяном, можно обработать герметиком под цвет двери;
- если проём широкий, то необходимо заблаговременно проработать вопрос о заделывании части проёма, чтобы при отделке наличником его ширины хватило для полного закрытия полости по периметру двери;
Для предотвращения порчи поверхности дверных элементов при врезке замков, ручек, петель, ответной планки необходимо использовать малярный скотч.
Межкомнатные двери сегодня являются неотъемлемым атрибутом каждого интерьера. Разнообразие моделей позволяет сделать вашу комнату не только практичной, но и оригинальной. Но эта особенность во многом зависит от правильной установки дверной коробки межкомнатной двери. Поэтому перед тем как начинать подобную операцию следует ознакомиться с основными нюансами этой процедуры.
Виды дверей
Межкомнатные двери – конструкции, которые играют только декоративную роль, поэтому параметры прочности здесь не так важны. Производители стараются сделать свои изделия максимально комфортными и красивыми. Основным критерием для классификации межкомнатных полотен является материал, из которого их производят. В зависимости от этого, можно выделить несколько видов дверей:
- ДВП. Основу составляют деревянные бруски, к которым прикрепляют тонкие древесные плиты. Чтобы защитить поверхность материала, его ламинируют и покрывают несколькими слоями лака. Этот вид продукции является самым дешевым, но и недолговечным. Зачастую они дополняются коробкой с порогом. Специалисты не рекомендуют устанавливать эти двери в ванную комнату или на кухне, где плохая вентиляция.
- МДФ . Полотна стоят намного дороже изделий из ДВП. Продукция отличается оптимальным соотношением цены и качества. Поэтому многие покупатели отдают предпочтение дверям из МДФ. Материал неплохо противостоит влаге, а также имеет высокие показатели звукоизоляции.
- Натуральное дерево. Двери из массива – уникальные и красивые изделия, которые прекрасно подойдут под любой интерьер. Вещество очень хорошо обрабатывается, что позволяет придавать ему разную форму. Поэтому такие двери очень часто украшают резьбой, что делает их еще красивей.
Дополняются они телескопической или простой коробкой, позволяющей крепить наличники более качественно. Изготавливают дверные полотна из различных пород деревьев, среди которых самыми популярными являются сосна, дуб, ясень, клен, красное дерево и многие другие.
Существует еще множество других классификаций межкомнатных дверей, которые учитывают их технические параметры и особенности конструкции. Они могут быть одно- или двустворчатыми, а сама поверхность может быть гладкой или дополняться фигурными вырезами и вставками из стекла.
Что понадобится?
Установка межкомнатных дверей предполагает не только тщательный подход, но и использование качественного вспомогательного инструмента. Для выполнения подобных задач вам понадобится такой стандартных набор изделий:
- Пила. Она должна быть острой и иметь небольшие зубья, что позволит исключить появление сколов на поверхности коробки.
- Дрель и набор сверл. Тип инструмента зависит от материала стены, к которому будет крепиться каркас. Важно, чтобы сверла смогли пробурить отверстия в кирпиче, бетоне и т. д. В некоторых случаях вам может понадобиться перфоратор и несколько буров.
- Шуруповерт и насадки под определенный вид крепежа.
- Рулетка и карандаш для отметок.
- Уровень.
- Крепеж. В большинстве случаев вам нужно будет несколько саморезов по дереву, а также дюбели для установки в стену. Иногда можно использовать и специальные анкеры.
- Монтажная пена.
- Распорные элементы. Они нужны для фиксации коробки в проеме. Зачастую для этого используют деревянные клинья. Поэтому нужно запастись деревом, из которого впоследствии можно будет сформировать несколько подобных изделий.
Этот список не является универсальным, так как он зависит от типа дверного каркаса и способа его монтажа.
Тонкости установки
Монтаж дверной коробки межкомнатной двери – сложная процедура, требующая определенных навыков и терпения. Начинать нужно с подготовки рабочего инструмента, а также выбора способа крепления. В большинстве случаев монтаж выполняется с помощью анкеров , которые надежно фиксируют каркас.
Как собрать?
Начинается процедура установки коробки с ее сборки. Эта конструкция может быть нескольких видов. Сегодня все чаще используются П-образные каркасы, которые исключают наличие порога. Но есть и прямоугольные конструкции, применяемые также довольно часто.
Заводские модели зачастую уже подготовлены к сборке, так как их предварительно отделывают, чтобы придать красивый вид. Если же вы решили соорудить коробку из деревянного бруса самостоятельно, тогда его нужно тщательно высушить и отполировать.
Сборка коробки предполагает выполнение нескольких последовательных операций:
- Изначально нужно выложить бруски на ровную горизонтальную поверхность. Зачастую для этого используют пол, который застилают бумагой или пленкой, чтобы исключить повреждение дверного полотна.
- Сбор коробки начинается с измерений. Важно, чтобы ширина проема была несколько больше, чем само дверное полотно.
- Когда все данные известны, следует соединить элементы короба в единую конструкцию. Стыковаться они могут несколькими основными способами. Самым простым считается соединение под 90 градусов. Для этого верхнюю планку с торцов подрезают под данным углом.
Важно, чтобы поверхность среза была ровной и без перекосов. После этого вертикальная опора приставляется к поперечной планке и прикручивается.
- Соединить эти элементы можно и под углом в 45 градусов. Для этого на каждом бруске срезается угол. После стыковки обеих конструкций они также должны образовывать 90 градусов. Обратите внимание, что не следует допускать даже самых минимальных отклонений, так как от этого зависит работа всей системы.
- Когда вы подогнали все бруски, можно их соединять между собой. Для этого используют гвозди или саморезы. Желательно загонять по 2 крепежа в каждой стыковочной стороне. Важно, чтобы после сборки коробка максимально прочно удерживалась, и не сдвигались элементы друг относительно друга. Если вы планируете организовать порог, то к опорам он прикрепляется наподобие верхней планки. Важно также соединить эту часть максимально ровно.
- После сборки коробки следует приступить к креплению петель. Для этого каркас укладывают на пол и выравнивают. После этого с одной из сторон на вертикальной стойке вырезают пазы под петли. Специалисты рекомендуют располагать их на расстоянии 20 см от верхнего и нижнего краев. Пазы формируют с помощью стамески или фрезера.
- Когда петли прикреплены, следует поместить внутрь коробки дверное полотно и отметить места расположения их на нем. Для этого изделие выравнивается относительно каркаса, а затем прикладываются петли и отмечаются места.
Пазы на двери вырезаются аналогичным образом, что и на коробке.
Как правильно установить?
Монтаж дверной коробки своими руками предполагает выполнение нескольких последовательных операций:
- Перед тем как устанавливать изделие, нужно выполнить замеры конструкции и дверного проема. Важно, чтобы конструкция помещалась в отверстие, которое должно быть несколько больше ее.
- После этого нужно аккуратно поднять и вставить коробку в проем. Устанавливать конструкцию нужно на ровную поверхность, чтобы исключить перекосы. Торцы изделия должны совпадать с одной из сторон стены. Это важно, если ширина каркаса меньше этого значения.
- Важно, чтобы коробка стояла ровно во всех плоскостях. Поэтому нужно ее выровнять и зафиксировать в таком положении. Для этого используются деревянные распорки, которые устанавливаются между каркасом и стеной.
Как крепить?
Крепление конструкции является завершающим этапом монтажа этого изделия. Этот процесс состоит из нескольких последовательных этапов:
- В закрепленной коробке сверлят несколько крепежных отверстий. При этом используют сверло по дереву, которым проходят только каркас.
- Чтобы сформировать отверстия в стене под дюбель, используют длинное сверло по бетону. С его помощью делают пометки через ранее высверленные дырки на поверхности вертикальных опор. Обратите внимание, что диаметр сверла не должен быть больше отверстия в дереве, так как затем вы не сможете зафиксировать систему саморезом.
- На данном этапе нужно снять коробку и в отмеченных местах на стене просверлить дырки большего диаметра. Они должны подходить под пластиковый дюбель или анкер, который будет использоваться для этих целей.
- Когда все готово, коробка снова устанавливается на место, выравнивается и фиксируется с помощью клиньев. Если все хорошо, можно прикручивать каркас к стене саморезами в нескольких местах. При этом важно постоянно контролировать положение коробки относительно различных плоскостей.
- Завершается процедура заполнением щелей монтажной пеной и навешиванием дверей на петли.
Способы замены
Очень часто межкомнатные двери устанавливаются на место уже изношенных систем. Это, в свою очередь, предполагает демонтаж старой коробки. Чтобы заменить старую конструкцию можно использовать несколько способов:
- Демонтаж с разрушением каркаса. Этот подход предполагает удаление старой коробки с помощью грубой силы. Здесь используют как ломы, так и пилы, которыми делят ее на несколько отдельных частей. После этого уже выполняют монтаж новой системы.
- Разборка конструкции с сохранением каркаса. Если двери еще в нормальном состоянии и их можно использовать в другом месте, снимают коробку аккуратно. Для этого последовательно удаляют все саморезы или другие крепежные элементы. Затем устраняется пена, которая фиксирует изделие дополнительно. Это позволит вам с легкостью впоследствии вынуть коробку, сохранив ее целостность.
Это пошаговое руководство не является универсальным, так как замена коробки происходит с учетом конкретных особенностей конструкции.
Если дверь цепляет порог
Деревянные двери имеют предрасположенность к перекашиванию. Даже если вы установили конструкцию и проверили правильность ее хода, это не значит, что так будет всегда. Очень часто полотно начинает цепляться за порог.
Обычно дверные коробки заводского исполнения продаются в уже собранном виде. В таком случае сборка дверной коробки не требуется. Осуществляется лишь монтаж. Если приобретается изделие по частям, то сборка занимает определенное время и требует некоторых профессиональных навыков, а также инструмента. Зато в таком случае ее легче правильно подогнать под существующий проем.
Установка дверной коробки своими руками не всякому под силу, но при соблюдении технологии и аккуратном выполнении основных правил и требований вполне возможна. А о том, как собрать дверную коробку правильно описано ниже.
Основные этапы монтажа
Теперь о том, как установить дверную коробку. Весь процесс установки сводится к целому комплексу работ, основными среди которых являются:
- Выполнение замеров.
- Сборка.
- Установка петель.
- Монтаж, закрепление и выравнивание блока.
- Проверка функциональности и отделка двери.
Чтобы сделать все, как положено, без соответствующего инструмента не обойтись. Понадобятся:
- Дрель или перфоратор с перьевым сверлом.
- Рулетка.
- Уровень, угольник.
- Ножовка или лобзик.
- Молоток, отвертка, киянка, стамеска, гвозди, дюбели и саморезы.
- Карандаш.
Также потребуются деревянные бруски, клинья и монтажная пена. Клинья можно сделать из любого подручного материала. Чаще используются деревянные или обрезки плит МДФ.
Правильно начинать монтаж после демонтажа старой лутки, расчистки и укрепления проема. Сделать это нужно основательно, чтобы избежать последующей необходимости в дополнительном укреплении проема.
Замеры
Чтобы сделать замеры проема точно и правильно, потребуется хорошая рулетка. Специалистами часто используется лазерная, исключающая возможность ошибок, связанных с человеческим фактором.
Первым делом измеряются высота и ширина проема. Очень часто геометрия его не идеальна, особенно в домах старой постройки. Поэтому, габариты измеряются в нескольких точках.
За образец выбираются наибольшие значения – по ним осуществляется выбор коробки. При этом, в расчет берется то, что коробка должна быть меньше проема на 5-6 см по всем параметрам. Только в таком случае можно сделать надежный монтаж к стене – зазоры нужны для установки клиньев и монтажной пены.
Когда проем существенно превосходит по размерам дверь, в стене можно сделать металлический каркас с последующей обшивкой гипсокартонном или МДФ. Используются различные виды доборов из самых разных материалов, самым распространенным из которых является тот же МДФ.
Конструктивные части
Дверная коробка состоит из следующих частей:
- Полотно. Чаще всего в самодельных конструкциях используются массив, ДСП или МДФ.
- Вертикальные бруски – 2 штуки.
- Горизонтальные бруски – 1 или 2 штуки. Все бруски делаются исключительно из хорошей натуральной доски. Нижний чаще не используется и заменяется порогом.
- Наличники – 3 штуки. Данные элементы, как правило, изготавливаются из МДФ.
Изделие в сборе установить в проем и закрепить не составляет большого труда. Самое главное, выдержать плоскость. Конструкция вставляется в проем и фиксируется клиньями, после чего проверяется ровность по всем осям. Эта задача решается с помощью уровня и отвеса. Коррекция положения осуществляется теми же клиньями. Дальнейший монтаж выполняется в описанном ниже порядке.
Сборка
Какой бы сложной не показалась данная операция, сборка дверной коробки осуществляется в следующем порядке:
- Элементы конструкции раскладываются на полу и тщательно осматриваются. Бруски заводского производства должны иметь пазы, необходимые для соединения деталей в одно целое.
- Концы брусков распиливаются под углом 45 градусов. Можно этого не сделать, но тогда конструкция будет выглядеть грубо.
- Составные части стыкуются паз в паз, после чего конструкция сбивается киянкой и скручивается саморезами. Если пазов нет, конструктивные части соединяются гвоздями или шурупами. Нижняя планка практически не используется, поэтому крепить ее необязательно. Отбивка порогом выполняется уже после монтажа двери.
Если соединение притолоки и стоек выполняется под углом 90 градусов, то верхний горизонтальный брус накладывается на стойки требуемого размера, а затем прикручивается или прибивается к ним с контролем по уголку. Лишние куски отрезаются ножовкой.
При использовании шипового соединения в соседних брусках делаются шипы, толщина которых должна быть равна толщине брусков. Именно этими «зацепами» соединяются горизонтальная и вертикальные планки между собой.
Петли должны ставиться на высоте не менее 20 см от обреза полотна. Если конструкция имеет солидную массу, то понадобится три петли, например, для двери из массива. Для изделия из МДФ будет достаточно двух.
На данном этапе требуется сделать следующее:
- Короб укладывается на пол и размечается под врезку петель.
- Затем делается выборка под петли. Для этого используется фрезер или стамеска. Не стоит стараться сделать всю выборку одним ударом молотка по стамеске – так можно испортить материал.
Глубина стандартной посадки должна быть примерно 2 мм. В сложенном состоянии петли должны оставлять зазор между полотном и луткой не более 4 мм. Расчет глубины выреза должен учитывать толщину петель и данный параметр. Для формирования требуемого зазора рекомендуется подкладывать картон между полотном и луткой на этапе сборки.
- Петли на лутке устанавливаются штырями вверх.
- Далее прикладывается полотно и на его торце отмечаются положения петель.
- На полотне делается такая же выборка, как на стойках. Хотя специалисты рекомендуют делать выборку под петли сначала на полотне.
- Петли на полотне и коробке прикручиваются к посадочным местам. Важно учитывать, что на полотне петли должны смотреть штырями вниз. Отверстия под саморезы просверливаются заранее.
Монтаж
После окончания всех приготовлений, можно приступать. Установка дверной коробки своими руками в проем выполняется с помощником. Конструкция довольно тяжелая и ее монтаж требует большой физической силы. Короб в сборе из МДФ можно поставить в одиночку.
Крепление дверной коробки осуществляется только к жесткой основе.
- Лутка, в которой заранее просверлены отверстия, вставляется в проем без полотна и по периметру фиксируется деревянными клинышками. Рекомендуется использовать побольше – до 15 штук. Отверстий в боковых стойках должно быть 7-8, а в притолоке не менее трех.
- В нижней части устанавливается распорная планка, равная по величине притолоке.
- Далее при помощи изменения положения клиньев с контролем плоскости по отвесу и уровню выполняется выставка по осям. Это самый ответственный этап работы. Если короб завалится на пару миллиметров, это будет видно. Более того, створка может цеплять пол.
- Делаются отметки для будущих углублений в стене под дюбели.
- В стене высверливаются дырки, в которые вставляются анкерные болты или дюбели. Первые используются при установке в бетонный, а последние – в проем из кирпича, ракушняка или других относительно хрупких и мягких материалов.
- Пустоты заполняются монтажной пеной. Чтобы она не попадала на видимые части конструкции, их закрывают малярным скотчем. Необходимо помнить, что пена увеличивает объем наполовину при контакте с воздухом.
Работать надо осторожно, чтобы не повредить деревянные элементы. Как правило, сначала заполняется треть пространства щели. Специалисты рекомендуют оставлять клинья в проеме, пока пена окончательно не засохнет. То есть, удалять их можно через сутки. Выступающие остатки засохшей пены удаляются малярным ножом.
На видео можно ознакомиться с монтажом коробки межкомнатной двери:
- На последнем этапе осуществляется навеска полотна и установка наличников. Наличники крепятся саморезами или сажаются на клей. Оснащение конструкции красивым декоративным порогом существенно увеличивает ее привлекательность. Его тоже прикручивают саморезами или приклеивают к полу.
Как видим, ничего сверхъестественного или сверхсложного. Разумеется, нужны глазомер, аккуратность, терпение и хороший инструмент, но более всего – сильное желание. Если чего-то нет, браться за монтаж не стоит. В лучшем случае потеряете время. В худшем – придется исправлять ошибки за свой счет. Установка дверной коробки часто входит в ее стоимость, а специалисты справятся с этой работой в любом случае быстрее и качественнее. Помните, грамотный монтаж – залог длительной и надежной работы дверной конструкции.
Как правильно собрать дверную коробку
Экономия в ремонте — это не всегда хорошо, но если есть человек с руками и мозгами он справится с любой задачей самостоятельно. При покупке дверного блока в комплекте поставщика, коробка прилагается в разобранном виде. Для того чтобы узнать как правильно и аккуратно собрать и установить дверную коробку межкомнатной двери своими руками, необходимо ознакомиться с видео, к которому прилагается и инструкция.
Блок: 1/10 | Кол-во символов: 416
Источник: https://dverikom.ru/info/mezhkomnatnye/kak-pravilno-sobrat-i-ustanovit-dvernuyu-korobku-mezhkomnatnoy-dveri-video-i-instruktsiya/
Разновидности дверных коробов
Чтобы правильно установить дверной короб в стеновой проем, предварительно рекомендуется изучить конструкцию изделия.
Коробка является несущим элементом дверной конструкции, который принимает на себя нагрузку полотна. Она состоит из одной горизонтальной и двух вертикальных планок, соединяющихся между собой. Крепление короба осуществляется непосредственно к стенкам входного или межкомнатного проема.
Несущий элемент двери формирует ровный портал, а также обеспечивает надежное крепление самой двери. С одной стороны рамы коробки крепятся петли, на которые навешивается полотно, с другой стороны выполняется отверстие для замочного механизма и крепится ответная планка.
Положение двери в первую очередь зависит от правильного монтажа несущей составляющей (короба). Поэтому именно данный этап работ является приоритетным. Даже из-за незначительного перекоса двери буду плохо закрываться, затираться и быстро изнашиваться. Также важно обращать особое внимание на прочность рамы, учитывая вес материала, из которого изготовлено полотно.
Дверные коробки, предлагаемые на рынке, классифицируются по разным показателям. Одним из них является технология сборки конструкции: прямая, диагональная или шип в паз. Установка в дверной проем коробки межкомнатной двери выполняется только после предварительной сборки конструкции.
В первом случае элементы дверной коробки соединяются между собой перпендикулярно. Во втором – края планок обрезаются под 45 градусов. В обоих случаях для их соединения используются шурупы. Самым надежным способом соединения конструкции является шип в паз, который вырезан непосредственно в планке.
Также коробки можно разделить на разные типы по материалу изготовления. Для их производства используют сталь, дерево, пластик и МДФ панели. Сегодня на входе в квартиры и частные дома чаще всего устанавливают металлические конструкции. Они наиболее прочные, надежные и долговечные. Деревянные двери устанавливаются в межкомнатные проемы, а пластиковые — на балконах.
Блок: 2/9 | Кол-во символов: 2017
Источник: https://o-dveryah.ru/mezhkomnatnye/ustanovka-korobki/
Как снимать размеры
Вначале замерьте дверной проем. Стандартные размеры дверных полотен имеют высоту 2000 мм и ширину 900 мм, 800 мм и 700 мм. Внутренние размеры дверной коробки увеличиваются на 3 мм по всему периметру (технологический зазор), внешние размеры коробки больше размеров дверных полотен на 70 мм. Это стандартная толщина реек коробки. Если у вас рейки имеют иной размер, то изменяются и внешние размеры дверной коробки. А зазоры между дверным проемом и коробкой должны быть не менее трех сантиметров.
Таблица соответствия размеров дверных блоков и проемов
Типовые размеры дверей
Теперь можете проверить, подходят ли ваши двери к дверному проему. Если нет – придется или расширять или уменьшать дверной проем. Это наиболее худший вариант, размеры дверных проемов нужно внимательно контролировать на стадии сборки сруба бани.
Дверная коробка должна соответствовать размерам проемов
Еще один важный момент по размерам – зазор между дверной коробкой и полом. В зависимости от конкретного места установки двери этот зазор регулируется положениями СНиП 41–01–2003.
Свод правил. Отопление, вентиляция и кондиционирование
СНиП 41–01–2003
Зазор изменяется в пределах 10÷15 миллиметров и должен обеспечивать минимально требуемую кратность воздухообмена для каждого помещения. Любая естественная вентиляция помещений работает по принципу приточно-вытяжной. Если не будет притока свежего воздуха, то, само собой, не будет и его вытяжки.
Размеры дверной коробки
Некоторые владельцы в целях экономии тепла в помещениях желают поставить двери без вентиляционного зазора, для бань возможен такой вариант, в них никто не собирается ночевать. Но здесь неопытные строители могут сами создать себе проблему. Минимальный зазор между дверным полотном и полом в пределах 1÷2 мм может стать причиной их заклинивания или затрудненного открывания/закрывания. Дело в том, что половое покрытие в банях редко имеет такую точность по горизонтали. Чтобы избежать проблем с дверным полотном и не подрезать его после установки нужно замерить уровень пола по углам коробки.
Какой должна быть дверь в бане
Сечения дверных коробок
Сделать это довольно сложно, расскажем подробно о двух методах.
- С помощью гидроуровня. Очень аккуратно поставьте две метки на дверном проеме с обеих сторон. Расстояние от меток до уровня пола приблизительно 20÷30 сантиметров. При помощи точной линейки замеряйте расстояние от пола до сделанных меток. В большинстве случаев несоответствие составит не менее 2÷3 миллиметров. Это нужно учитывать во время изготовления вертикальных боковин коробки, а минимальный зазор между дверным полотном и полом увеличится на величину несоответствие горизонтальности пола. В одном положении он будет, к примеру, два миллиметра, а в противоположном месте увеличится до 4÷5 мм. Если вы не будете учитывать уровень пола, то дверная коробка вообще может не открываться полностью или будет открываться с большим «скрипом». Придется снимать и резать полотно, а это крайне нежелательно.
- С помощью лазерного уровня. Выставьте лазерный луч точно по горизонтали примерно на удалении 10 см от уровня пола. Линейкой (лучше на угольнике) сделайте замеры по углам дверного проема, нарушение высоты пола учитывайте во время изготовления коробки. Этот способ намного проще, замеры делаются быстрее, но при одном условии – у вас есть в наличии довольно дорогой прибор.
Самостоятельный замер проёмов
Дверные коробки могут быть с порогом и без порога. С порогом чаще устанавливаются как входные и редко как межкомнатные, без порога двери устанавливаются только в качестве межкомнатных.
Дверная коробка с порогом
Дверная коробка с порогом и без
Цены на дверную коробку
дверная коробка
Блок: 2/6 | Кол-во символов: 3659
Источник: https://banya-expert.com/okna-i-dveri/kak-pravilno-sobrat-dvernuyu-korobku.html
Разметка и замеры
Перед тем как собрать дверную коробку необходимо произвести несколько точных замеров и сделать разметку материалов. Дверной блок устанавливается после того, как готовы полы и произведена отделка стен.
Снятие размеров производится по высоте, ширине и толщине дверного проема. Показания следует указывать с точностью до 0,01 см. При неточности в измерении, дверь установленная своими руками, может неплотно прилегать, или скрипеть при открытиизакрытии.
Разумеется, существуют определенные стандарты дверных коробок:
кухня – 60 х 200 см;
жилые комнаты – 70-80 х 200 см;
санузел – 60 х 190-195 см.
Но с учетом старых построек, нарушения геометрии проема и разницы в толщине стен, лучше перестраховаться и замерить все повторно. Это даст гарантии правильной работы дверного блока в целом.
Замеры межкомнатной двери
Чтобы произвести замеры, необходимо иметь под рукой следующие инструменты:
Переходите к измерению:
Измерьте высоту и ширину проема. Для определения верной горизонтали, ширина измеряется по уровню пола.
Определите габариты дверного полотна. Для этого необходимо от ширины проема отнять ширину бруса каркаса двери, умноженную на 2, а полученный результат округлить до сотни. Например, если измерение проема показало 90 см, а ширина бруса коробки 25 мм, то по простой формуле рассчитываются габариты полотна (900 — 25*2 = 850). На основании чего полотно должно составлять 80 см. Высота определяется аналогичным образом.
Отдельно замерьте проемы в ванной комнате и санузле. Здесь, за счет порожка, который предотвращает вытекание воды, высота значительно меньше.
Вычислите глубину дверного блока. Для этого следует сделать замер толщины стены.
Важно! Обрезать дверное полотно не рекомендуется, подбирать его необходимо по проведенным замерам. Если этим пренебречь, вы столкнетесь с образованием слишком больших зазоров или порчей двери.
Прежде чем установить дверную коробку также необходимо проверить уровень пола. Важно, чтобы пол был ровным. Этот замер производится с помощью строительного уровня. Разница между стойками дверной коробки не должна превышать 2 мм.
Блок: 4/10 | Кол-во символов: 2417
Источник: https://dverikom.ru/info/mezhkomnatnye/kak-pravilno-sobrat-i-ustanovit-dvernuyu-korobku-mezhkomnatnoy-dveri-video-i-instruktsiya/
Выбор блока межкомнатной двери
При выборе дверного блока стоит учесть:
Способ открытия. Самыми популярными являются распашные двери. При недостатке пространства используют раздвижные двери-купе. Они монтируются особым способом и открываются по направляющим планкам, задвигаясь в специальную выемку в стене. Намного реже используются складные (в форме гармошки) и конюшенные (представляющие собой 2 половины полотна, распахивающиеся в обе стороны). Они подбираются к соответствующему дизайну помещения.
Шумоизоляция. На это качество влияет не только полотно, но и коробка межкомнатной двери, а также обналичники.
Вес полотна. Этот фактор зависит исключительно от материала, из которого изготовлена дверь. Чем она тяжелее, тем качественнее должна быть фурнитура.
Материал исполнения. Изготовляют двери из массива дерева, плит МДФ и ДСП. Наиболее качественными считаются изделия, выполненные из цельного дерева, минусом является вес такой двери.
Совет. При выборе блока межкомнатной двери, проконсультируйтесь с продавцом об ее классе пожарной безопасности. Так, дверь защитит вас не только от шума, но и от огня.
Блок: 3/10 | Кол-во символов: 1189
Источник: https://dverikom.ru/info/mezhkomnatnye/kak-pravilno-sobrat-i-ustanovit-dvernuyu-korobku-mezhkomnatnoy-dveri-video-i-instruktsiya/
Подготовка проема к установке дверной коробки
Перед установкой рамы двери надо обязательно проверить вертикальность стены у проема и внутри него. Делают это для того, чтобы наличник был установлен в одной плоскости со стеной и не отходил от нее, а рама встала в проем без перекоса, иначе крепление дверной коробки будет выполнено с браком. Для измерения используют строительный уровень с отвесом.
При обнаружении отклонений бетонной стены от вертикали потребуется устранение дефекта при помощи финишной шпатлевки. Доведя стену у проема до полной вертикальности, просушите ее в течение 24 часов. Обнаруженные отклонения откосов от вертикали внутри проема корректируют так же.
Блок: 4/7 | Кол-во символов: 676
Источник: https://ODveryah.ru/montazh/ustanovka-korobki-mezhkomnatnoj-dveri
Вывод
Оба изложенных выше способа проверены на практике и работают отлично. Тем же мастерам, которые желают установить себе межкомнатные раздвижные двери мы подготовили пошаговую инструкцию «здесь».
Установить межкомнатные двери своими руками не так сложно как кажется.
Блок: 4/4 | Кол-во символов: 269
Источник: https://doorchange.ru/montazh/ustanovka-mezhkomnatnyh-dverej-2-prostyh-sposoba-s-polnym-opisaniem.html
Сборка дверной коробки с порогом
Теперь стоит рассмотреть процесс сборки дверной коробки с порогом. Соединять элементы коробки, для разнообразия, будем не под углом 45°, как в вышеописанном случае, а под углом 90°. Делаем это специально в надежде, что лишние знания никому не помешают.
Сооружение дверной коробки с порогом
Деревянный порог в конструкции коробки
Кроме того, такое соединение элементов дверной коробки считается более прочным. Если в первом случае длина саморезов ограничивалась толщиной углового соединения, то теперь эти ограничения снимаются, саморез может входить в тело бруска на 2÷3 сантиметра. Более прочное соединение повышает устойчивость порога дверной коробки, а на него могут действовать значительные усилия.
Замеры и подготовка
Проверка состояния дверного проема, проверка уровня пола по углам, снятие размеров, подготовка мест для установки петель и сверление под шурупы крепления коробки ничем не отличается от сборки дверной коробки без порога. А дальше начинаются отличия.
Шаг 1. Отпилите верхний горизонтальный брусок коробки. Его длина должна равняться ширине дверного полотна плюс 6 миллиметров на зазоры с обеих сторон коробки. Таких заготовок нужно сделать две – одна используется под порог двери.
Разметка и распил заготовок
Шаг 2. На вертикальных брусках коробки нужно снять выступающую упорную четверть. Имейте в виду, что в чистоте размер вертикальных стоек дожжен равняться высоте дверного полотна плюс 6 мм на зазоры с двух сторон. Кроме того, левая и правая вертикальные стойки дверной коробки должны учитывать разность высоты пола в углах дверного проема. Все технологические операции мы уже описывали в первом примере, повторяться нет смысла.
Для того чтобы снять четверть, приложите к торцу вертикальной стойки коробки горизонтальную часть и отметьте ее ширину. Замер делайте с максимальной точностью, не допускайте появления щелей в соединении. Как бы потом вы их ни заделывали, настоящий мастер всегда увидит недочеты. По отмеченной линии аккуратно надпилите выступающую четверть, глубина пропила должна равняться высоте четверти. Пилите только ножовкой с мелкими зубьями, инструмент, как и всегда, должен быть в надлежащем состоянии.
Снятие четверти коробки
Запиливание четверти
Шаг 3. С торца вертикальных брусков стамеской уберите четверть. Работы делайте очень аккуратно. Плоскость бруска после удаления должна быть идеально ровной по всей ширине. Во время работы правильно держите стамеску. Она имеет нижнюю плоскую часть, а верхняя заточена под углом. Верхняя плоскость всегда должна быть видна, в противном случае стамеска самопроизвольно будет врезаться в дерево, ровная поверхность не получится. Это правило касается всех случаев работы стамеской. Сделайте такие же работы со всех сторон дверной коробки.
Шаг 4. Положите детали на ровную поверхность и соедините вначале верхнюю часть дверной коробки. Перед ввинчиванием нужно предварительно в деталях просверлить отверстия немного меньшего диаметра, чем диаметр саморезов. Это исключит вероятность растрескивания или появление зазора между деталями во время соединения.
Сборка верхней части коробки
Схема сборки углов
Шаг 5. Советуем перед сборкой порога проверить соответствие его размеров и правильность места расположения. Для этого аккуратно положите собранный каркас коробки из двух вертикальных и одного горизонтального элементов на ровную площадку и поставьте на место дверное полотно. Отметьте точное положение петель на полотне, проверьте все зазоры по периметру дверной коробки и полотна. Пока нет порога, вертикальные стойки можно немного двигать. Еще раз проверьте расстояния, проверьте правильность изготовления порога и при необходимости исправьте допущенные ошибки, в таком положении у вас есть возможность немного поправить размеры.
Крепление порога
Далее все по ранее описанной схеме. Подготавливайте посадочные гнезда под петли на полотне, фиксируйте саморезами порог дверной коробки и устанавливайте ее в дверной проем.
Установка дверной коробки – фото
Порог классической двери
Видео – Сборка дверной коробки с порогом
Блок: 5/6 | Кол-во символов: 4046
Источник: https://banya-expert.com/okna-i-dveri/kak-pravilno-sobrat-dvernuyu-korobku.html
Если дверь цепляет порог
Деревянные двери имеют предрасположенность к перекашиванию. Даже если вы установили конструкцию и проверили правильность ее хода, это не значит, что так будет всегда. Очень часто полотно начинает цепляться за порог. Исправить данную проблему можно несколькими способами:
- Смена расположения петель. Устранение перекоса выполняется за счет установки петель на новое место. Здесь важно провести точные замеры, чтобы исключить подобные проблемы в будущем.
- Срезание порога. Если эта часть сделана из дерева, можно попробовать снять небольшой слой древесины. Это позволит дверному полотну свободно ходить. Этот вариант подходит, только если перекос двери является минимальным. Подобным же образом можно поступить и с самим дверным полотном, подрезав его лобзиком снизу.
Блок: 5/6 | Кол-во символов: 1010
Источник: https://dekoriko.ru/dveri/mezhkomnatnye/ustanovka-dvernoj-korobki/
Пошаговая установка межкомнатных дверей
Как правильно установить одностворчатую межкомнатную дверь, чтобы она стояла ровно и легко закрывалась? Порядок действий следующий:
- Выполнить демонтаж старой двери и подготовку проема.
- Собрать дверной короб. Составные части необходимо разложить в нужном порядке, учитывая при этом то, в каком направлении будет открываться полотно.
- Верхнюю планку короба соединить с торцами двух его стоек. Использовать можно гвозди или саморезы.
- Установить навесы.
- Установить короб. Раму, которую собрали ранее, помещают в проеме, после чего выставляют в вертикальном и горизонтальном положении с использованием клиньев.
- Навесить дверь. Петельную стойку короба нужно закрепить к стене с помощью шурупов, после чего навесить на петли полотно.
- Закрепить вторую стойку к стене шурупами. Затем по створке нужно проверить зазоры между коробкой и краем полотна, чтобы не допустить образования щелей. В ситуации, когда предусматривается наличие порога, нужно его прикрепить к поверхности пола. Затем запенить монтажные щели между коробкой и краями проема.
- Врезать ручку, замок и установить наличники.Теперь разберем технологию работ с учетом требований ГОСТ и СНиП пошагово.
Шаг 1: Сборка дверной коробки
Дверной короб – это каркас, составленный из брусьев. Установочные короба могут быть исполнены в П-образной или прямоугольной форме. Последний случай применим при установке дверей в ванной комнате либо туалете. П-образная форма применяется обычно во всех остальных случаях, когда отсутствует порог.
Раскройка и способы соединения
Производители чаще всего выпускают для коробочного бруса готовые отрезки, которые между собой должны соединяться шурупами. Если планируется самостоятельная работа, то наилучшим решением является сборка коробки согласно дверному полотну. Для этого дверь укладывается на ровный пол, после чего выполняется распиловка деталей короба при последующей компоновке.
Есть два способа для того, чтобы соединить детали короба:
- Запил притолоки и стоек под углом 45°. Тем, кто не имел большого опыта в столярных работах, такой способ будет сложно использовать. Сами детали соединяют с помощью саморезов. Для них нужно сделать отверстия перпендикулярно срезу. Отверстия должны делаться заблаговременно, чтобы не испортить заготовку.
- Запил под прямым углом. Для этого достаточно будет использовать ножовку с мелкими зубцами. Чтобы определить размер бруска по вертикали, нужно взять высоту полотна и добавить к ней по 3 мм на низ и верх при условии, что в дверном проеме планируется наличие порога. Если его нет – снизу нужно оставить порядка 1 см. Притолока будет крепиться двумя саморезами к вертикальной стойке.
Важно помнить – второй способ является единственным возможным в случае запила бруса для порога.
Очень важно при установке проверить все зазоры между коробом и полотном – со всех сторон должно быть 3 мм. Если устанавливается короб П-образного типа, нужно выдержать зазор в 1 см между поверхностью пола и краем двери снизу.
Соединение элементов короба
Все приготовленные заблаговременно стойки, а также верхняя перекладина должны быть в итоге совмещены и стянуты саморезами длиной 6 см. Для одного стыка стоит применять не меньше 3 саморезов.
Для достижения нормальной плотности соединения с одного из элементов короба нужно удалить часть четверти с помощью стамески либо ножовки. Длина удаляемой части примерно должна быть равна толщине бруска, который примыкает к детали.
Выполнение аккуратного запила четвертиСборка короба на ровном полу – обязательное условиеВыполненное соединение под 45 градусов
Если размер двери намного меньше проема, то монтаж следует производить по следующей схеме с притолокой во всю ширину проема.
Шаг 2: Установка петель
Одним из важнейших этапов при сборке межкомнатной двери в домашних условиях является установка навесов. От этих элементов зависит то, насколько качественно будет закрываться и открываться дверь. Большинство людей ошибочно полагают, что достаточно двух петель при монтаже межкомнатной двери из МДФ. Но наиболее рациональным будет использование трех штук. Размечать места установок петель необходимо от верха двери.
Можно использовать накладные или врезные петли. Подробно весь процесс монтажа с фото и видео изложен в инструкции по установке петель на межкомнатные двери.
Шаг 3: Установка коробки и навеска полотна
Короб должен быть установлен в заранее приготовленный проем. Стойка с петлями должна быть выровнена в первую очередь с помощью отвеса или уровня. Нужно обязательно проверить ее со всех сторон. Затем верхнюю перекладину и стойку необходимо распереть клиньями. Стойка будет являться выставленной только тогда, когда она займет вертикальное положение.
Далее расклинивают вторую стойку. Обязательно при этом проверяется горизонтальная часть короба.
Старый способ – боковые стойки должны быть насквозь просверлены. Для этого в стене изначально делают отверстия для дюбелей. Короб должен быть прикреплен к стене саморезами длиной не менее 150 мм.
Старый способ крепеж
Для того, чтобы зафиксировать короб в проеме скрытым способом, можно использовать металлические пластины, которые обычно применяются для установки гипсокартонных конструкций. Чаще всего такие пластины используются вместе с анкерами. При этом стоит выбирать количество крепежных деталей в соответствии с ожидаемой нагрузкой.
Так выглядит крепление
Применение таких пластин является нестандартным способом и возможно только в отсутствии чистовой отделки. Рекомендуется проштробить участок стены, чтобы в последствии зашпаклевать крепеж.
Остается навесить дверь на раму. После этого нужно провести финальную регулировку коробки. Затем стойка для замка должна быть подогнана под дверь, чтобы она не выступила за стену. Стоит помнить, что для сохранения целостности короба и полотна, нужно сначала просверлить для шурупов несколько отверстий.
Шаг 4: Запенивание
После закрепления полотна нужно запенить щели между коробом и краями проема. Пена должна подаваться аккуратно, по слоям, при этом подача производится сверху, чтобы она не выступила наружу. Затем дверь придется закрыть и определенное время к ней не прикасаться, чтобы пена высохла. Примерное время засыхания – 1 сутки.
Если состав случайно попал на полотно – немедленно удалите его чистой сухой тряпкой, засохшие фрагменты очищаются при помощи эффективных способов удаления монтажной пены с дверей.
Шаг 5: Установка замка и ручек в дверное полотно
Самыми популярными сегодня являются ручки со встроенным замком. Порядок работ следующий:
- Сделать отметку на метр от пола. Механизм ручки должен быть приложен так, чтобы в отверстии сверху была видна отметина.
- Просверлить отверстия в полотне с торца. Края отверстий после этого стоит срезать при помощи стамески, чтобы выровнять отверстие.
- Вставить механизм в отверстие. При этом замок должен быть выровнен, а после зафиксирован при помощи саморезов. Планка на замке должна обводиться карандашом для прорезки шпона, затем механизм стоит снять. По намеченному контуру нужно выбрать площадку для определения толщины замочной планки. Это делается при использовании стамески.
- Просверлить отверстия для защелки и ручек. Нужно приложить замок к полотну с разных сторон, выровнять его и разметить. Отверстия должны проделываться с обеих сторон и при этом они не должны являться сквозными.
- Убрать образовавшуюся стружку и установить ручки.
Важно помнить, что не стоит использовать саморезы, идущие с ручкой в комплекте. Они сделаны из нетвердого металла, вследствие чего быстро выйдут из строя. Стоит воспользоваться калеными саморезами высокого качества. Читайте подробные пошаговые инструкции по установке замка и ручки в межкомнатную дверь.
Шаг 6: Установка доборных планок
Добором называется планка длиной примерно 2 метра, шириной – 250 мм, толщиной – не более 3 см. Планка должна применяться во время монтажа межкомнатных дверей, если стена толще, чем дверная коробка.
Брус для короба изготавливается в стандартной ширине – примерно 70 мм. Его можно расширить согласно толщине проема добором. Это позволит более четко совместить короб и стены. На брусе имеется паз для планки. Предварительно необходимо произвести замер расстояния до края стены, начиная от глубины паза.
Добор может быть установлен разными способами:
- в паз, имеющийся в коробке;
- с вырезанием паза при отсутствии готового;
- прикрепление добора с изнанки бруса при отсутствии паза, короб устанавливается при этом вместе с добором;
- скрепление добора в форме «П»;
- если добор не слишком широкий и не имеется паза в коробе, планку стоит просверлить и прикрутить к коробу.
Планка распиливается на несколько частей циркуляркой, чтобы получить несколько доборов необходимых габаритов. Приготовить нужно одну короткую планку и две вертикальные. Изучите нашу простую пошаговую инструкцию по установке доборов на межкомнатную дверь.
Шаг 7: Крепеж наличников
Во время монтажа наличников короб должен быть расположен на уровне с проемом на лицевой стороне. Чтобы соединить наличники, нужно сначала приложить вертикальную планку к коробу и поставить отметину выше на 0,5 см, отступая от перекладины коробки. Данная отметка будет выступать в качестве края для среза. Таким же образом нужно разметить срез с другой стороны.
Блок: 4/4 | Кол-во символов: 9102
Источник: https://DomZastroika.ru/dveri/mezhkomnatnye/instrukciya-po-ustanovke.html
Как укрепить дверь?
Укрепление межкомнатной двери не является сегодня актуальным вариантом, так как от нее не требуется особой крепости. К примеру, МДФ полотно можно выбить ногой или ломом, так как материал не отличается прочностью. Если же вам нужно укрепить деревянную входную дверь, то сделать это можно с помощью таких способов:
- Усиление коробки. На каждом соединительном углу устанавливаются металлические уголки, которые предотвращают разрушение коробки при нажиме ломом. Подобный подход также будет эффективен, если конструкция выполнена из бруса, а не из МДФ или ДВП.
- Усиление полотна. Для этого поверхность двери оббивается металлическим листом и устанавливается качественная фурнитура. При этом теряется декоративное оформление полотна.
Установка дверной коробки – это довольно сложная операция, которую следует доверять опытным специалистам. Это обеспечит не только качественную работу системы, но и ее надежность.
Подробнее о том, как укрепить дверь, вы узнаете из следующего видео.
Блок: 6/6 | Кол-во символов: 1202
Источник: https://dekoriko.ru/dveri/mezhkomnatnye/ustanovka-dvernoj-korobki/
Как собрать дверную коробку?
Сделать дверную коробку из заготовок правильно поможет схема сборки.
- Раскладывают элементы на плоской поверхности на одном уровне.
- Правильно размечают дверную коробку.
- Торцы брусков запиливают под углом 45 или 90 градусов.
- Определяют положение петель и отмечают их на вертикальной стойке. Отмеряют по 200 мм снизу и сверху. С какой стороны зависит от правого или левого открывания двери.
- Если петли врезные, стамеской делают выемку и закрепляют их. Накладные петли просто прикручивают в нужном месте.
- Бруски стягивают саморезами. Процедуру проводят аккуратно, потому что, немного переусердствовав, можно повредить элементы.
- В завершение вставляют дверное полотно, выравнивают и проверяют, есть ли между ним и конструкцией нужный зазор.
Короб необходимо увеличить с помощью добора, если ширина стены больше 70 мм, а наличники ставятся с двух сторон.
Если выполняется сборка дверной коробки из МДФ, все крепёжные работы должны проводиться с предварительным рассверливанием, чтобы не образовались трещины и сколы на изделии.
Как запилить дверную коробку под 45 градусов?
Элементы с округлым сечением запиливают под углом 45◦. Для того чтобы сделать правильный зарез используют стусло или торцовочную пилу с вращающимся столиком.
Выполняться сборка дверных коробок своими руками может без применения специальных инструментов. В таких случаях можно нужный угол отпилить без стусла, используя для разметки линейку и транспортир.
При выполнении монтажа конструкцию закрепляют с помощью саморезов, которые вкручивают под углом.
Сборка коробки под углом в 90 градусов
При таком варианте сборка дверной коробки выполняется легко и быстро.
- Нужно отпилить необходимую величину стоек и горизонтальной перекладины под прямым углом.
- Выбрать лишнюю часть притвора.
- Элементы коробки разместить на полу выровнять и закрепить в торцах саморезами (по 2 в каждый).
Для того чтобы все стороны сохранили параллельность к дверному коробку можно приложить дверь и проверить, как она будет стоять в проёме. Соединение дверной коробки под 90 градусов у специалистов считается быстрой технологией монтажа.
Сборка коробки с порогом
Существенной разницы между установкой дверных коробок с порогом и без него не существует. Пороги в последнее время утратили свою актуальность. Но, несмотря на это, поклонников у такой системы немало. Объясняется это тем, что она более крепкая и надёжная, чем конструкция без нижней поперечной планки. Такие системы могут выдерживать значительные нагрузки и подходят для установки массивных дверей из дерева. Пороги считаются обязательным условием для санузлов. Независимо от того какой выбран вид конструкции собрать коробку межкомнатной двери сможет каждый человек.
- Заранее подготавливают вертикальные и горизонтальные планки.
- Зарезают под 45 или 90 градусов.
- Подготовленные элементы располагают на ровной поверхности.
- Поочерёдно скрепляют стойки и перекладины с помощью саморезов.
Блок: 5/7 | Кол-во символов: 2911
Источник: https://dvernoiguru.ru/ustanovka/kak-sobrat-dvernuyu-korobku-svoimi-rukami/
Посадка коробки на строительную пену
Двери в сборе (коробка, подвешенное на петли дверное полотно и распорки между этими элементами для сохранения необходимого зазора) устанавливаются в предварительно подготовленный проем. Конструкция подгоняется по вертикали и горизонтали с помощью строительного уровня и отвеса. После этого для ее фиксации между коробкой и стеной проема вставляются деревянные колья.
К данному этапу рекомендуется отнестись ответственно, чтобы в дальнейшем избежать перекоса дверей. Зазоры между дверным каркасом и стеной заполняются специальной строительной пеной. Это рекомендуется делать аккуратно маленькими порциями и тонкими слоями до полного заполнения свободного пространства.
Далее необходимо дождаться, пока пена полностью высохнет, после чего обрезать ее выступающие излишки. Затем щели закрываются декоративными наличниками. Дверная конструкция будет держаться только на монтажной пене.
Блок: 7/9 | Кол-во символов: 922
Источник: https://o-dveryah.ru/mezhkomnatnye/ustanovka-korobki/
Что ещё важно знать?
Не у каждого человека получится с первого раза качественно выполнить установку дверной коробки. Но не стоит отчаиваться. Потому что многие изъяны можно устранить.
- Если есть некрасивый шов, закрыть стык между ламинатом и дверной коробкой можно плинтусом или специальным гибким порожком.
- Если коробка не влезает в проём, то стойки и поперечные планки можно немного подрезать.
- Красиво заделать щель между дверной коробкой и стеной позволяют наличники. Если их ширины не хватает, придётся щель штукатурить и декорировать.
- Для установки коробки межкомнатной двери в бетонной стене или из кирпича невозможно обойтись без перфоратора.Если выполняется установка дверной коробки из МДФ предварительно на планках, с помощью сверла, делают отверстия и только потом работают перфоратором.
- Крепить дверную коробку к деревянной стене намного легче, чем к другим материалам. В таком случае не пригодится перфоратор для сверления отверстий. Нужно просто с помощью анкеров прикрутить дверную коробку к стене. Главное учесть, что со временем деревянные постройки могут дать большую усадку.
- Для облегчения процесса монтажа, были созданы специальные монтажные системы дверных коробок. Благодаря им конструкцию можно поставить в стены из любого материала, не используя при этом клинья и распорки. Такой комплект включает в себя крепежи скрытого монтажа, подробную пошаговую инструкцию и схемы. Используя систему, вставить дверную коробку сможет даже новичок.
Блок: 7/7 | Кол-во символов: 1458
Источник: https://dvernoiguru.ru/ustanovka/kak-sobrat-dvernuyu-korobku-svoimi-rukami/
Дверь цепляет коробку: как устранить проблему?
Если после выполнения монтажа дверное полотно трется о коробку, дверь закрывается с трудом или не плотно, необходимо выяснить причину.
Повело коробку
В такой ситуации в первую очередь проверяется правильность монтажа и надежность крепления дверных петель. Если причина не в них, значит, короб деформировался в результате вздутия строительной пены из-за значительных температурных перепадов.
Чтобы устранить образовавшийся дефект, дверную коробку необходимо просверлить насквозь и соединить с бетонной стеной с помощью длинных шурупов или анкеров. Отверстия затем декорируются заглушками.
Повело деревянное полотно двери
В этой ситуации необходимо снять замочный механизм, немного отшлифовать торцевую часть полотна с помощью наждачной бумаги, закрепленной на ровном деревянном бруске. В процессе шлифования периодически проверяется касание полотна о профиль короба. После достижения необходимого зазора шлифовка прекращается, обработанный участок тонируется и покрывается лаком, дверной замок устанавливается на свое место.
Блок: 9/9 | Кол-во символов: 1071
Источник: https://o-dveryah.ru/mezhkomnatnye/ustanovka-korobki/
Количество использованных доноров: 8
Информация по каждому донору:
- https://dverikom.ru/info/mezhkomnatnye/kak-pravilno-sobrat-i-ustanovit-dvernuyu-korobku-mezhkomnatnoy-dveri-video-i-instruktsiya/: использовано 3 блоков из 10, кол-во символов 4022 (8%)
- https://dvernoiguru.ru/ustanovka/kak-sobrat-dvernuyu-korobku-svoimi-rukami/: использовано 4 блоков из 7, кол-во символов 6604 (14%)
- https://ODveryah.ru/montazh/ustanovka-korobki-mezhkomnatnoj-dveri: использовано 1 блоков из 7, кол-во символов 676 (1%)
- https://banya-expert.com/okna-i-dveri/kak-pravilno-sobrat-dvernuyu-korobku.html: использовано 2 блоков из 6, кол-во символов 7705 (16%)
- https://doorchange.ru/montazh/ustanovka-mezhkomnatnyh-dverej-2-prostyh-sposoba-s-polnym-opisaniem.html: использовано 2 блоков из 4, кол-во символов 10698 (22%)
- https://o-dveryah.ru/mezhkomnatnye/ustanovka-korobki/: использовано 4 блоков из 9, кол-во символов 5017 (11%)
- https://dekoriko.ru/dveri/mezhkomnatnye/ustanovka-dvernoj-korobki/: использовано 3 блоков из 6, кол-во символов 3736 (8%)
- https://DomZastroika.ru/dveri/mezhkomnatnye/instrukciya-po-ustanovke.html: использовано 1 блоков из 4, кол-во символов 9102 (19%)
Prehung Межкомнатные двери: установка за 8 шагов
Описание проекта
Навык
3 из 5 Умеренный Установка требует терпения и времени, и разочарование может возрасти, если каркас стены сломан.Стоимость
От 60 до 600 долларов в зависимости от стиля и дерева
Расчетное время
От 4 до 6 часов
Дверь — это точный инструмент.Он должен постоянно защелкиваться в защелке, открывать косяк и легко поворачиваться на петлях. Точные допуски, необходимые для достижения таких характеристик, помогают объяснить, почему подвешивание двери считается истинным показателем столярного мастерства.
«Я начал использовать немного больше, чем молоток, долото и отвертку», — говорит генеральный подрядчик This Old House Том Сильва. В те дни он собирал косяк, вырезал вручную петли и вешал дверь отдельно. «На это потребовалось много времени и много терпения», — говорит он.
Что такое передняя дверь?
Подвесная дверь — это блок, который поставляется с фурнитурой и рамой, готовый к установке в дверной проем. Приобретение одного действительно упрощает и ускоряет установку, но термин «prehung» на самом деле неправильный. Эти двери и косяки все же необходимо тщательно отрегулировать, чтобы учесть недостатки каркаса стены. «Чтобы вставить один из них, требуется точность, — говорит Том. «Если он установлен неправильно, он не будет хорошо зависать».
Распространенные ошибки, которых следует избегать при заказе дверей Prehung
Раньше, когда плотники собирали детали вокруг двери по частям, они могли легко настраивать свою работу, вносить изменения или исправлять проблемы.Однако в случае подвесной двери большая часть монтажных работ выполняется за пределами предприятия, поэтому ошибка, сделанная при размещении заказа, может превратить идеально хорошее устройство в бесполезный лом. Вот два шага, чтобы избежать этого.
ЗНАЙТЕ ВАШЕ ОТВЕРСТИЕ: двери Prehung предназначены для грубых отверстий от 2 до 2 1 ⁄ 2 дюймов больше, чем соответствующие размеры косяка. Глубина косяка должна соответствовать толщине стены, включая штукатурку или гипсокартон. Если проем уже существует, убедитесь, что триммеры расположены отвесно, параллельно и перпендикулярно стене и коллектору.Если это не так, прочтите перед заказом «Распашку двери перед подвешиванием: как добиться совершенства» (ниже).
УКАЗАТЬ НАПРАВЛЕНИЕ ПОВОРОТА: Ваш поставщик должен знать, в какую сторону вы хотите, чтобы дверь открывалась, но остерегайтесь вопроса: «Вы хотите левую или правую дверь?» Эти термины не всегда означают одно и то же. Поэтому вместо того, чтобы отвечать прямо, скажите, на какой стороне вы хотите, чтобы ручка открывалась на вас. Пусть этот человек выяснит, что такое «ручная рука» двери.
Грегори НемекДвери Prehung висят на косяке, который «расколол» на две части. Дверь крепится к основному косяку, который устанавливается первым. На разрезном косяке имеется паз под упором, поэтому он может скользить по краю основного косяка. Обычно оба косяка комплектуются уже прикрепленными кожухами.
Как установить межкомнатную дверь Prehung
Детали предвесной двери
Грегори Немек1.Проверяем черновое вскрытие
Дэвид Кармак- Поставьте 4-футовый уровень на пол в дверном проеме. Если сторона петель ниже, чем сторона защелки, вставьте прокладки под уровень, ближайший к косяку петли. Регулируйте, пока пузырек уровня не окажется в центре.
- Прибейте прокладки к полу с помощью чистового гвоздя. Если сторона защелки ниже, прокладки не требуются.
- Проверьте стены и стойки триммера на наличие отвеса с помощью уровня или отвеса.Кроме того, проверьте лицевую сторону триммера обрамляющим квадратом, чтобы убедиться, что они перпендикулярны стене.
- Наконец, проверьте параллельность триммеров, измерив расстояние между ними вверху, внизу и в середине отверстия. Если стена находится не по вертикали, или триммеры не по вертикали, не по квадрату или не параллельны, см. Раздел «Поворот двери перед подвешиванием: как добиться совершенства» ниже.
2. Отрегулируйте триммеры
Дэвид Кармак- На косяке петли измерьте расстояние от нижней части косяка до центра каждой петли.Отметьте места петель на триммере со стороны петель, измеряя расстояние от пола (или верха прокладок).
- Прикрепите отвес к верхней части триммера со стороны петель и измерьте зазор между веревкой и триммером в каждом месте петли. Там, где зазор самый маленький, установите прокладки внахлест.
- Отрегулируйте регулировочные шайбы на толщину 1/8 дюйма и закрепите их чистовым гвоздем. Измерьте зазор между регулировочными шайбами и шнуром отвеса.
- Поместите перекрывающиеся пары регулировочных шайб в двух других местах шарнира.Отрегулируйте толщину каждой пары до тех пор, пока зазор между прокладками и струной не будет равен зазору первой пары.
- Прибейте каждую пару к триммеру и обрежьте концы канцелярским ножом, чтобы они не выступали за гипсокартон.
3. Вставить дверь в проем
Дэвид Кармак- Поднимите дверцу в грубый проем и плотно прижмите косяк петли к регулировочным шайбам, прикрепленным к триммерам.
- Закрепите финишный гвоздь 8d через поверхность кожуха со стороны петель на 3 дюйма ниже угла наклона в триммер. Удерживая уровень напротив лицевой стороны кожуха, отрегулируйте косяк внутрь и наружу до вертикального положения.
- Если стена отвесная и кожух прилегает к ней заподлицо, вставьте в нее финишные гвозди 8d в двух других местах петель.
- Если стена не по вертикали и кожух не упирается в нее, установите прокладку за кожухом в местах петель, чтобы дверь была вертикальной.
- Забейте гвоздь сквозь кожух и регулировочные шайбы в триммер. Заполните зазоры между обшивкой и стеной с помощью деревянных клиньев.
4. Отрегулируйте зазор между дверцами
Дэвид Кармак- Проверьте горизонтальный зазор или «откос» между верхней частью двери и косяком. Он должен быть одинаковым слева направо и шириной от 1/8 до 3/16 дюйма.
- При необходимости отрегулируйте фугу, приподняв кожух головки.Установите этот откос, вбив гвоздь 8d через лицевую часть кожуха со стороны защелки в триммер рядом с верхней частью двери.
- Проверить вертикальную фаску между дверью и косяком со стороны защелки. Он должен быть толщиной с никель. Чтобы отрегулировать его, возьмитесь за кожух и вручную сдвиньте косяк.
- Откройте и закройте дверцу, чтобы убедиться, что ее передняя кромка, та, которая упирается в упор, выходит из косяка на ровную 1/8 дюйма.
- Установите фугу, забивая финишные гвозди 8d через каждые 16 дюймов через кожух со стороны защелки и в триммер.Убедитесь, что раскрытие остается неизменным.
5. Закрепить косяк
Дэвид Кармак- Вставьте пару прокладок между основным косяком со стороны защелки и триммером в верхней части дверного проема. Когда они просто касаются тыльной стороны косяка, не оказывая на него никакого давления, прибейте их к триммеру с помощью гвоздей 8d.
- Прибейте дополнительные пары регулировочных шайб на несколько дюймов выше основания этого косяка, а также чуть выше и ниже ответной планки.Без этих прокладок косяк мог прогнуться.
6. Заменить винт петли
. Дэвид Кармак- На косяке петли снимите центральный винт с верхней петли и замените его винтом достаточной длины, чтобы войти в триммер. Это предотвращает провисание и заедание двери.
Совет: Если длинные винты не подходят к тем, которые идут в комплекте с петлями, установите их за створкой петли.
7. Прикрепите разрезной косяк
Дэвид Кармак- Начиная снизу, осторожно вставьте край разрезного косяка в паз в основном косяке. Соедините два косяка обеими руками.
- Прибейте опалубку к стене с обеих сторон каждого угла наклона и примерно через каждые 18 дюймов вдоль обсадной трубы.
- Чтобы скрепить два косяка, вбейте гвозди 8d через упор в триммеры: по одному гвоздю в каждом месте петли, по одному через прокладки в верхней и нижней части косяка и по одному чуть выше и ниже нападающий.НЕ прибивать к косяку.
8. Установите фиксатор
Дэвид Кармак- Прикрепите запорную планку к пазу в косяке защелки с помощью прилагаемых винтов. Если тарелка больше паза, поставьте тарелку на косяк, обведите карандашом и долотом по контуру.
- Вставьте болт защелки в отверстие и закрепите пластину в пазу на краю двери с помощью прилагаемых винтов.Если паз слишком узкий, отрегулируйте его размер так же, как вы делали ударную планку.
- Установите ручки с обеих сторон фиксирующего болта, затем вставьте и затяните соединительные винты, которые удерживают ручки вместе.
- Закройте дверь и прислушайтесь к защелке защелки. Если дверца дребезжит, слегка согните зубец на запорной планке до упора. Если защелка не защелкивается, отогните зубец от упора. Затяните все винты.
Распашная дверь с предварительным подвешиванием: доведение до совершенства
Грегори НемекТак же, как построить дом на ровном фундаменте, проще повесить дверь на ровном, вертикальном и квадратном уровне.Хотя это редкость в большинстве старых домов (и, к сожалению, в большом количестве новых), тот факт, что проем не в порядке, не означает, что дверь должна быть такой же. Хитрость заключается в том, чтобы отрегулировать либо сам проем, либо технику подвешивания двери.
НАРУЖНЫЕ СТЕНЫ: Если высота стены между верхом проема и полом превышает 1/8 дюйма по вертикали, дверь следует подключать по отвесу независимо от проема. Просто закрепите шарнир и косяки с помощью уровня или карабина и удерживайте их на месте с помощью прокладок.Между обшивкой и стеной останется зазор, поэтому вырежьте кусок дерева, чтобы заполнить его. Расколотый косяк может поместиться на каркасной стене 2х4 на расстоянии до 1/2 дюйма от отвеса. Мало того, и косяк может понадобиться доработать.
ОТВЕРСТИЕ ИЛИ НЕПАРАЛЛЕЛЬНЫЕ ТРИММЕРЫ: Прокладки могут компенсировать нисходящие триммеры, если только они не настолько плохи, что дверь не подходит. Если подгонка слишком тугая по дну (а стена недавно перешита), вы сможете набрать примерно 1/2 дюйма с небольшим толчком.Выкрутите винты, которыми гипсокартон крепится к триммерам, затем вставьте концы триммера в стену с помощью кувалды. Пригвоздите их к подошве, отрежьте пластину заподлицо с помощью сабельной пилы и снова прикрутите шурупы для гипсокартона. Санки не подойдут, если проем сверху слишком плотный или если стена залита старой штукатуркой. В таких случаях измените оформление проема или закажите дверь меньшего размера.
НЕКВАДРАТНЫЕ ТРИММЕРЫ: Квадрат в обрамлении может сказать вам, перпендикулярны ли грани триммеров поверхности стены.В противном случае у вас могут остаться закрученные петли или неровные щели между дверью и косяком. Чтобы исправить это, добавьте третью регулировочную шайбу к стандартной оппозитной паре. Сдвиньте третью прокладку назад и вперед под двумя другими, чтобы изменить их угол по отношению к триммеру. Примечание. Если вы сделали это со стороны петель, перед установкой двери дважды проверьте, что все три набора прокладок установлены по вертикали.
Что делать после появления двери …
- Измерьте длину головных и боковых косяков.Соответствующие размеры в отвесе и квадратном черновом проеме должны быть на 2–2 1 ⁄ 2 дюймов больше. (В худшем случае дверь может быть установлена с зазором всего 1/8 дюйма, из стороны в сторону.) Также убедитесь, что глубина косяка равна толщине стены.
- Убедитесь, что дверь будет вращаться в правильном направлении после установки.
- Зазор между нижней частью двери и чистовым полом должен быть 3/8 дюйма или меньше. Этот зазор устанавливается обрезкой торцов петли и косяков защелки.Просто убедитесь, что у вас есть порог или толстое ковровое покрытие, прежде чем делать эти разрезы.
- Установите замок в отверстия, просверленные в двери. Слишком маленькие отверстия можно расточить. Слишком большие отверстия придется заткнуть, зашлифовать, а затем снова просверлить. Если возможно, верните эту задачу в магазин, который ее выполнил.
Прочтите, как установить внешнюю подвесную дверь, чтобы получить информацию об установке наружной двери.
Инструменты
Установка новой наружной дверной коробки в проем
Как упоминалось на других страницах, часто бывает необходимо установить как новую дверную коробку, так и новую дверь.Это относительно простой процесс, который начинается с измерения проема в существующей кирпичной кладке, чтобы проверить, подходит ли одна из деревянных рам Wickes с подоконником. Необходимые размеры проема под кирпичную кладку для дверных коробок Wickes: 6 футов 10 дюймов x 2 фута 10 дюймов, 6 футов 10 дюймов x 3 фута 1 дюйм и 7 футов 0 дюймов x 3 футов 0 дюймов с небольшим зазором по всему периметру. подчеркнули, что эти размеры дают зазор около 9 мм, так что раму можно установить под прямым углом. Снимите старую дверь и выбросьте ее. Старый каркас, вероятно, был установлен целиком, когда дом строился, и его придется разрезать по частям.Начните с пропиливания обоих боковых косяков под углом. Вставьте конец лома или подобного рычага за вырезанные косяки, отведите их от кирпичной кладки и отделите от головы и подоконника. Аналогичным образом прорежьте голову и подоконник и снимите их. Вы можете обнаружить, что головка на каждом конце заходит в кирпичную кладку, и секции придется вытаскивать. Полученные отверстия нельзя использовать повторно, их следует залить цементным раствором.
Удалите все старые гвозди, оставшиеся в кирпичной кладке, и очистите проем, срезав все желобки раствора.Убедитесь, что прямо под уровнем старого подоконника установлен влагостойкий слой. Если он поврежден, его необходимо заменить. Если нет гидроизоляционного покрытия, установите его. Соберите новую раму, надежно выбив паз и шип. Нанесите водостойкий клей для дерева на стыки и скрутите их. Обрежьте подоконник только в том случае, если он слишком длинный и не умещается на месте старого.
Обратите внимание, что рамы Wickes Hardwood можно использовать для дверей, открывающихся внутрь или наружу, просто расположив косяки правильным образом на подоконнике.Наружные двери должны открываться внутрь. Вставьте собранный каркас в проем. Установите под подоконник клинья, чтобы он упирался в перемычку. Используйте спиртовой уровень, чтобы выровнять подоконник по горизонтали. Используйте больше клиньев, чтобы косяки встали вертикально. Несколько раз используйте спиртовой уровень, чтобы проверить вертикальное выравнивание.
Измерьте диагонали рамы, чтобы убедиться, что рама имеет идеальную квадратную форму, как на диаграмме K. Только когда они имеют точно такие же размеры, вы можете быть уверены, что она квадратная, и для этого может потребоваться некоторая регулировка клиньев.Прикрепите раму к кирпичному проему с помощью наших фиксаторов рамы 8 мм x 80 мм. Просверлите отверстия прямо в раме и в стене. Зенковать отверстия в раме. Вставьте фиксаторы и вкрутите винты, стараясь не деформировать раму из-за слишком сильного их вкручивания. Избегайте размещения каких-либо креплений там, где должны располагаться дверные петли, но у них есть хотя бы одно крепление чуть выше или ниже предполагаемого положения защелки для дополнительной безопасности.
Повесьте дверь перед тем, как покрыть головки винтов подходящей деревянной шпаклевкой и перед тем, как закрепить дверцу вокруг рамы.Это позволит при необходимости внести незначительные изменения в положение кадра.
Используйте цементный раствор для заполнения пространства под порогом и внешний герметик вокруг косяков и головы.
См. Другие связанные страницы: — Выбор дверей — Остекление дверей — Подвесные двери
При этом были предприняты все меры для обеспечения того, чтобы дизайн продукта, описания, спецификации и методы изготовления были точными на дату печати. Продукты Wickes неизбежно будут время от времени меняться, и покупателю рекомендуется проверять, что дизайн, описания, спецификации и методы изготовления любого из продуктов, описанных в этом буклете, все еще действительны на момент покупки или размещения заказа.© Wickes Building Supplies Limited, 2000. Все права защищены. DIYData.com имеет разрешение Wickes на воспроизведение этой статьи.
Все права защищены. Никакая часть этой публикации не может быть произведена или передана в любой форме или любыми средствами, электронными, механическими, путем фотокопирования, записи или иным образом, или сохранена в любой поисковой системе любого характера без письменного разрешения правообладателя и издателя.
Изготовление дверного косяка, установка петель + установка | Серия дверей «сделай сам», часть третья
Рекламные объявления Вы определили правильный размер двери, и вы ее построили.А теперь пора его повесить. Вот как я сделал простой дверной косяк, добавил петли и установил дверь:
House Becoming Home является участником программы Amazon Services LLC Associates, партнерской рекламной программы, предназначенной для предоставления сайтам средств для получения рекламных сборов за счет рекламы и ссылка на Amazon.com. Некоторые ссылки в этом посте могут быть партнерскими ссылками. Прочтите мою полную политику раскрытия информации здесь.
Инструменты
- Маршрутизатор (я использую этот)
- Шаблон для врезки (я купил этот, в котором есть все необходимое, включая сверло, для размещения подходящих пазов для петель, ответных планок и защелок в двери и косяке )
- Измерительная лента
- Отвертка или ударный отвертка
Материалы и оборудование
- 1 × 4 или 1 × 6
- Шайбы
- 3 петли с закругленными краями (вы можете использовать петли с квадратными краями, но вы можете необходимо вырезать закругленные края, которые сделает ваш маршрутизатор + шаблон)
- Несколько винтов или гвоздей с плоской головкой примерно 1 ¼ ”-1 ½”
* Некоторые продукты ссылаются на партнерские сайты.Смотрите мое полное раскрытие здесь.
** ОТКАЗ ОТ ОТВЕТСТВЕННОСТИ: Я не профессионал. Это процесс, который я использовал, и он хорошо сработал для меня! **
ЧАСТЬ ТРЕТЬЯ: Инструкции по установке двери своими руками
ШАГ 1
После того, как ваши три части дверной коробки будут обрезаны до нужного размера, загрунтуйте и покрасьте их . Теперь это сделать намного проще, пока петли не были ввинчены и все это было прикреплено к двери.
STEP 2
Используя шаблон для пазов, проложите соответствующие пазы для петель на двери и косяке.Начните с пазов на двери, затем с пазов на косяке.
Примечания по размещению дверных петель- Расположение петель зависит от того, является ли ваша дверь поворотной влево или вправо, поворотной или наружной.
- Моя дверь, которая вращалась влево, означала, что петли будут с правой стороны двери, если смотреть спереди. Это также распашная дверь, что означает, что петли будут видны снаружи, а закругленная сторона паза будет с задней стороны двери.
- Я читал различные мнения о том, где должны быть размещены петли, но в конечном итоге остановился на том, чтобы одна была 5 дюймов сверху, одна 5 дюймов снизу, а третья была посередине между ними.
Вот фотография полного комплекта для врезки дверей Milescraft 1213. Имеется возможность делать пазы в дверях толщиной 1-3 / 4 ″ или 1-3 / 8 ″.
Когда вы поворачиваете красные ручки на передней панели, эта деталь сзади вращается, устанавливая правильное расстояние в зависимости от выбранной вами толщины двери.
Поскольку моя дверь сделана из бруса 2 × 6, ее толщина составляет 1-1 / 2 ». Ни один из вариантов настройки толщины не является правильным.
(Я не делал фото, пока делал это, поэтому на фотографиях ниже показан шаблон в формате 2 × 4, который имеет ту же толщину, что и моя дверь, сделанная из 2×6.)
При установке на 1 3/8 ″, Будет вырезано недостаточное количество двери:
При установке на 1 3/4 ″ будет вырезана слишком большая часть двери: Рекламные объявления
Решение: краска толщиной 1/4 ″ (или любой обрезок 1 / 4 ″)
Добавьте малярный карандаш с той стороны, к которой упираются красные ручки шаблона для пазов.Ваша дверь толщиной 1-1 / 2 дюйма теперь 1-3 / 4 ».
Установите приспособление на 1-3 / 4 ″
Вставьте правильный шаблон, в зависимости от размера ваших петель. В комплект входят варианты дверных петель 2,5, 3, 3,5, 4 и 4,5 ».
Поместите приспособление в правильное место на двери: Рекламные объявления
Прикрепите приспособление к двери, прикрутив его сверху и снизу (вы можете заполнить и перекрасить эти отверстия позже).
Присоедините к маршрутизатору прилагаемую фрезу. Установите глубину прорези такой же, как глубина петли, чтобы петля прилегала к двери заподлицо.
Я подумал, что поступил здесь сообразительно, установив глубину фрезы точно равной глубине петли. Я забыл, что шаблон для долбления добавляет еще один слой глубины, поэтому фреза даже не ударится по дереву при такой установке. Redo! Advertising
Я решил присмотреться к нему, затем протестировать на ломе, и мне повезло с нужной глубиной с первой попытки. Вот мой тест на ломе 2х4. Как видите, я просто установил толщину 1-3 / 8 ″.
Что не возвращает сокращение достаточно далеко.(Вот почему мы будем использовать малярный карандаш и установим толщину 1-3 / 4 ″, когда делаем пазы для петель на нашей настоящей двери!)
Вот настоящий паз для петель на моей настоящей двери, после того как я ее перекрасил .
И петля заподлицо!
Сделав прорези в двери для всех трех петель, возьмите 1 × 4 или 1 × 6, который будет той стороной рамы, к которой прикреплены петли. Отметьте размещение всех петель с учетом зазора 1/8 дюйма, который будет между дверью и верхней частью дверной коробки: Рекламные объявления
Отметьте правильное расположение всех петель (должно совпадать с петлями на дверной коробке). дверь), затем с помощью шаблона для пазов проложите пазы на дверной коробке.Опять же, вы будете использовать малярный карандаш и установить толщину 1-3 / 4 ».
Шаг 3
Закрутите петли. Прикрепил сначала к двери, а потом к боковой части косяка. На этом этапе вы присоединяете петли двери только к дереву. Это еще не полная дверная коробка.
Шаг 4
Постройте остальную часть дверной коробки вокруг двери, следя за тем, чтобы рама оставалась квадратной. Я предварительно просверлил отверстия и просто прикрутил два винта с плоской головкой из верхней части рамы к двум боковым частям косяка.
Вот моя дверь после того, как была построена рама: Объявления
Step 5
Прикрепите дверную коробку к дверному проему.
Вставьте дверь + раму в проем. Используйте прокладки, чтобы закрыть зазоры и при необходимости выровнять дверь. Мне не нужно было этого делать, потому что моя дверь и рама плотно прилегали.
Вот моя дверь после того, как задвинула ее на место. Видно, что боковой косяк не хотел прилегать к проему, что делало невозможным «закрыть» дверь.
Но это не проблема. Как только Джим пришел домой, я попросил его помочь мне удержать дверную косяк на месте, открыв дверь, пока я прибивал коробку на место.
Тах-да! Вот он, с прибитой рамой. (также добавлена дверная ручка, о которой я расскажу в следующем посте). Ух ты. Я был потрясен, когда он открылся… закрылся… оставался закрытым. Это сработало! Я понятия не имел, что способен на это!
Не забудьте заглянуть позже на этой неделе, чтобы увидеть последний пост в серии DIY Door, где я расскажу о добавлении отделки и вырезании отверстия для дверной ручки и защелки!
Узнайте больше из серии DIY Door
Вам понравился этот пост? Поделись, пожалуйста!
Нравится:
Нравится Загрузка…
Как установить подвесную дверь (обзор проекта)
Фото: mobilenewsblog.net
Двери бывают бесчисленного множества разных размеров и стилей — от современных плоских межкомнатных дверей стандартных размеров до массивных, традиционно оформленных подъездов. Для сравнения, существует значительно меньше способов установки; на самом деле их всего два. Дверь либо подвешена в собственном косяке, либо нет. Установить подвесную дверь значительно проще, но это не значит, что вам не придется потеть.Следующие советы помогут избежать типичных неудач.
Инструменты и материалыНет проблем немного отклониться от описанных здесь шагов, но помните, что независимо от используемых методов, цели всегда остаются неизменными: установить дверной косяк ровно и ровно; держите его заподлицо с окружающим его гипсокартоном; и поддерживайте равномерный фугу 1/8 дюйма (пространство между дверью и косяком).
Шаг 1Когда вы собираетесь установить подвесную дверь, начните с измерения грубого проема, в который вы ее помещаете.Проем должен быть на один-два дюйма больше самой двери. Это пространство для маневра позволяет вам установить дверную прокладку, доводя ее до горизонтального положения, критически важного для правильного функционирования.
Фото: familyhandyman.com
Шаг 2Установите дверь в грубое открытие. Полы за порогом еще не уложены? В этом случае установите прокладку под дверным косяком, чтобы учесть высоту, которая будет добавлена после установки пола.
Шаг 3Затем убедитесь, что сторона дверных петель ровная, то есть идеально вертикальная.Убедившись, что дверь все еще находится по центру проема, стабилизируйте ее, добавив прокладки с обеих сторон, ближе к верху. Проверить выравнивание с помощью уровня. Если дверь ровная, возьмитесь за петлю так, чтобы она была заподлицо с прилегающим гипсокартоном, а затем прибейте в косяк в точке, за которой вы добавили прокладки. Установите прокладки еще в нескольких положениях вдоль стороны петли; еще раз проверить уровень; затем прибейте через косяк, где бы вы ни установили прокладку.
Шаг 4Закройте дверцу и убедитесь, что ее верхняя часть выровнена.Однако не тратьте время на измерительный инструмент, если вы заметили, что откос между дверью и косяком неоднороден. Это верный признак того, что что-то не так. Внесите корректировки, отодвинув фиксирующую сторону двери. Меньше прокладок, когда откоса слишком мало; прокладывайте больше, когда одного слишком много. Продолжайте возиться, пока откос наверху не станет однородным.
Шаг 5Со стороны защелки двери поднесите косяк к соседнему гипсокартону. Откровение здесь должно быть 1/8 дюйма; в противном случае отрегулируйте прокладку, которую вы уже добавили в верхней части двери со стороны защелки.Когда закончите, проденьте косяк в том месте, где вы установили прокладку. Теперь поместите дополнительные прокладки в шести дюймах от нижней части двери, а также сверху и снизу, где будет проходить запорная планка. Пока откос остается однородным, продолжайте прибивать косяк в каждом месте, где вы добавили прокладки.
Шаг 6Чтобы закончить, проденьте еще несколько гвоздей через прокладки, которые вы прибили ранее. Ваша предварительно подвешенная дверь теперь ровная и отвесная, с равномерным открытием!
Советы своими руками: как отремонтировать дверной косяк
Иногда называемые дверными косяками, дверные косяки — это ножки ваших дверей.Их название происходит даже от французского слова «jambe», что переводится как «нога». Косяк представляет собой вертикальную часть дверной коробки и выдерживает вес двери через установленные петли.
Когда дверные ножки, иначе говоря, косяки, повреждаются, им потребуется либо незначительный поверхностный ремонт, либо полная замена. Износ после многих лет использования, повреждение водой, трещины и другие проблемы могут случиться с дверным косяком, что сделает его неработоспособным или просто станет бельмом на глазу.
Однако просто замена одного дверного косяка (а не других частей дверной коробки) часто не рекомендуется, потому что дверные коробки обычно покупаются в виде набора, который будет работать вместе.Кроме того, полная замена всей рамы гарантирует, что в ближайшее время ремонт не потребуется.
Если у вас есть дверной косяк, который необходимо заменить, вы можете сделать это самостоятельно. Если вы опытный плотник или нет, следуйте инструкциям ниже, и у вас будет рабочий дверной косяк в кратчайшие сроки.
Quick Note — Перед тем, как приступить к выполнению любых проектов по благоустройству дома своими руками, убедитесь, что вы приняли необходимые меры безопасности. Такие предметы, как защитные очки и перчатки, не обязательно носить, но они не повредят, особенно если вы впервые работаете с дверным косяком!
Без лишних слов, приступим!
Как я узнаю, что пора заменить дверной косяк или дверную коробку?
Прежде чем вы узнаете, как сделать дверной косяк или как заменить дверной косяк, имейте в виду, что есть незначительные повреждения, которые можно исправить с помощью нескольких простых инструментов и некоторых навыков.Незначительные повреждения, которые не требуют замены дверного косяка, включают слегка деформированные рамы, небольшие зазубрины или вмятины, небольшую гниль древесины и расколотый косяк (из-за физической силы).
Однако для более обширных версий этих повреждений, таких как следующие, может быть лучше полностью заменить дверные косяки или дверные коробки:
- Несколько вмятин, вмятин и щупов
- Обширная гниль древесины или сильное повреждение водой большей части рамы
- Раскол в косяке, превышающий примерно треть или половину длины дверной коробки
В некоторых случаях, если у вас нет возможности выполнить мелкий ремонт или вы просто хотите быть уверены в том, что новый ремонт не произойдет в ближайшее время, вы определенно можете выбрать новую дверную коробку.
Прежде всего: как снять дверь с дверной коробки
Измеряете ли вы старую дверную коробку, чтобы купить новую, или в процессе установки новой дверной коробки, первым делом необходимо безопасно снять дверь.
Вы также можете снять дверь для мелкого ремонта дверного косяка, если хотите, чтобы дверь была полностью защищена на случай каких-либо ошибок.
Вот как снять дверь:
- Закройте дверь. (Это гарантирует, что дверь не опрокинется и не упадет после удаления стержней петель.)
- Слегка постучите по стержням петли, используя гвоздь и молоток.
- Полностью вытащите шарнирные пальцы.
- Осторожно приоткройте дверцу, чтобы она не упала.
- Отложите дверь в сторону, когда вы приступите к работе с дверными косяками или дверной коробкой.
Если вы хотите узнать, как исправить мелкие повреждения дверного косяка, нажмите здесь.
Как исправить небольшие повреждения дверных косяков
Как исправить деформированные дверные коробки или дверные косяки
- После снятия двери с дверной коробки, слегка отметьте место расположения дверных накладок вокруг дверной коробки для легкой повторной установки позже.
- Затем с помощью молотка и зубила осторожно отделите дверной молдинг от рамы. Лучше начинать снизу, а затем двигаться вверх.
- Затем снимаем прокладки между дверной коробкой и стеной.
- Используя молоток и плоский кусок дерева, аккуратно забейте раму, чтобы вернуть ее форму. Это должно выровнять деформированные части рамы. Если нет, возможно, вам придется подумать о замене дверных косяков и дверной коробки в целом.
- Установите дверь на место и проверьте произведенные регулировки.
- После того, как все будет выровнено и дверь правильно закроется, установите дверные прокладки между дверной коробкой и стеной. Это помогает зафиксировать отремонтированную дверную коробку на месте. Если старые прокладки изношены или больше не подходят, возможно, вам придется приобрести новые.
- Далее установите молдинг двери на место. Используйте набор для гвоздей, чтобы вбить гвозди и заполнить углубление шпаклевкой для аккуратного покрытия.
Как исправить мелкие зазубрины или вмятины
- Определите размер поврежденного участка.
- Нажмите на все участки повреждения, чтобы проверить, насколько серьезны повреждения и насколько далеко они зашли. Удалите все незакрепленные фрагменты дерева.
- Если повреждение всего лишь царапина, вы можете отшлифовать ее, пока она не станет гладкой. Но для более глубоких вмятин, вмятин и выбоин заполните пространство эпоксидным наполнителем и дайте ему высохнуть в течение ночи.
- Когда эпоксидный наполнитель высохнет, отшлифуйте его до гладкости.
- Завершите отремонтированный участок, нанеся один слой грунтовки и два слоя краски.
Как исправить незначительную гниль древесины
- После снятия двери с дверной коробки измерьте всю площадь рамы, на которой произошло гниение древесины.
- Затем, используя долото или инструмент с прямым колебательным движением, удалите все гнилые участки. Очень важно удалить все остатки деревянной гнили, которые вы обнаружите. Если гниль древесины проходит прямо через дверную коробку или покрывает более трети дверной коробки, возможно, вам придется подумать о замене дверных косяков и дверной коробки в целом.
- Если древесная гниль неглубокая, вы можете заполнить ее сложенной проволочной сеткой подходящего размера. Привинтите проволочную сетку на место.
- Затем полностью покройте проволочную сетку эпоксидным наполнителем.Дайте высохнуть в течение ночи.
- Когда эпоксидный наполнитель высохнет, отшлифуйте его до гладкости.
- Завершите отремонтированный участок, нанеся один слой грунтовки и два слоя краски.
Как исправить разделенный косяк
- После снятия двери с дверной коробки, слегка отметьте место расположения дверных накладок вокруг дверной коробки для легкой повторной установки позже.
- Затем с помощью молотка и зубила осторожно отделите дверной молдинг от рамы.Лучше начинать снизу, а затем двигаться вверх.
- Затем отметьте 6 дюймов выше и 6 дюймов ниже области повреждения.
- Затем, используя небольшую ручную пилу, осторожно обрежьте отмеченный участок.
- Обрезать пиломатериал того же размера, что и удаленная часть. Лучше всего использовать тот же тип бруса, который используется для существующего каркаса. Избегайте обработки древесины , подвергнутой обработке давлением, поскольку она в конечном итоге будет скручиваться после высыхания.
- Используйте столярный клей, чтобы прикрепить новый брус к дверной коробке.
- Затем забейте два гвоздя сверху и снизу нового бруса, чтобы закрепить его на месте.
- Используйте набор гвоздей, чтобы вбить гвозди и заполнить выемку шпаклевочной массой для аккуратной отделки.
- Затем отшлифуйте только что отремонтированный участок, пока он не станет гладким.
- Покройте всю отремонтированную поверхность шпаклевкой, чтобы заполнить зазоры и укрепить все вокруг.
- Затем отшлифуйте шпатлевку, пока поверхность не станет полностью гладкой.
- Завершите отремонтированный участок, нанеся один слой грунтовки и два слоя краски.
- Далее устанавливаем молдинг двери на место. Используйте набор для гвоздей, чтобы вбить гвозди и заполнить углубление шпаклевкой для аккуратного покрытия.
Как установить дверной косяк для замены старого
Как вы понимаете, замена дверной коробки — более масштабный проект, чем простой ремонт дверного косяка. Поэтому мы разбили это на фазы. Но перед запуском убедитесь, что у вас есть:
- Шурупы по дереву
- Уровень
- Карпентер квадрат
- Прокладки для дерева (также называемые клиньями)
- Электродрель
- Отвертка
- Монтировка
- Набор гвоздей
- Шпатлевка
- Новая дверная коробка
Этап 1. Получение новой дверной коробки
Перед тем, как пойти в магазин за покупкой или изготовить косяк, обязательно снимите мерки, чтобы узнать нужный вам размер.Для этого выполните следующие действия.
- Снимите дверь с дверной коробки.
- Затем измерьте внутреннюю ширину дверной коробки в трех точках: вверху, посередине и внизу. Проделайте то же самое с длиной.
- Возьмите эти размеры с собой при покупке дверной коробки на замену в строительном магазине.
Дверные коробки можно приобрести сборными в магазинах товаров для дома. Вы также можете сделать один на заказ. В зависимости от того, где вы покупаете дверную коробку, она может быть полностью построена или состоять из трех отдельных частей, которые вам нужно будет собрать.
Инструкции по сборке прилагаются к нему, поэтому вам не нужно угадывать, где каждая деталь сочетается со следующей. Кроме того, если вам нужно изготовить индивидуальный косяк, это может занять время, поэтому приготовьтесь подождать несколько дней, пока не появится готовый продукт.
Этап 2: Удаление двери и молдинга
Удалите молдинг двери с помощью молотка и зубила, чтобы осторожно поддеть его. Начните с одного конца и продолжайте постепенно ослаблять кожух, пока он не освободится полностью. Когда вы закончите, отложите его в сторону, потому что вам нужно будет повторно использовать его после установки дверной коробки.
Этап 3. Удаление старой дверной рамы
Теперь пора ослабить старую дверную коробку с помощью отвертки или монтировки. В зависимости от возраста вашего дома дверные косяки могут крепиться гвоздями.
В новых домах дверные косяки можно прикрепить саморезами. Традиционные гвозди легко снимаются с помощью отвертки, а для деревянных гвоздей может потребоваться дополнительное поддевание или электродрель, чтобы высвободить их.
Этап 4: Установка новой дверной коробки
Теперь вы можете установить новую дверную коробку.
- Вставьте его на место в дверном проеме.
- Прикрутите раму на место. Затем вставьте прокладки в пространство между стеной и дверной коробкой.
- С вашим уровнем проверьте, ровная ли дверь. При необходимости переместите прокладки и используйте столярный угольник, чтобы убедиться, что дверной косяк ровный. Это столярный термин, означающий «выровненный по вертикали».
- Теперь, когда дверные косяки стоят ровно и ровно, их можно надежно закрепить на месте. Прикрепите петли к той стороне дверного косяка, на которой есть винты, и закрепите дверь на самом косяке.
- Затем установите молдинг на место. Используйте набор для гвоздей, чтобы вбить гвозди и заполнить углубление шпаклевкой для аккуратного покрытия.
Энергоэффективная, стильная и долговечная замена дверей в Торонто
В этой статье мы рассказали, как установить дверной косяк или как исправить незначительные повреждения существующего дверного косяка.
Однако в некоторых случаях может потребоваться замена всей двери, а не только дверной коробки. Это связано с тем, что повреждение дверной коробки может также повлиять на саму дверь, что чаще всего наблюдается при гниении и деформации древесины из-за длительного повреждения водой.
Не рекомендуется заниматься заменой дверей своими руками, если вы не являетесь экспертом. Если у вас нет необходимого опыта, вы можете серьезно травмироваться. Вместо этого обратитесь к профессионалу, чтобы избежать травм и несчастных случаев.
Если вам нужна идеальная замена двери и рамы, Clera Windows + Doors может помочь. Мы можем быстро и эффективно заменить и установить новую стильную дверь в вашем доме. Все, что вам нужно сделать, это сесть и расслабиться, пока мы делаем всю работу.По-другому мы бы не хотели. У нас есть широкий выбор прочных и энергоэффективных дверей, которые будут служить вашему дому долгие годы. Мы даже делаем настройки!
Самое приятное то, что мы производим двери, которые продаем, мы можем предложить их по самой выгодной цене.
Так что, если у вас есть какие-либо вопросы к нам, свяжитесь с нами или начните с БЕСПЛАТНОЙ консультации!
HUME КАК — УСТАНОВИТЬ СИСТЕМУ ПРЕДВАРИТЕЛЬНЫХ ДВЕРЕЙ
Быстро и просто — от начала до конца
1. Измерьте ширину и высоту проема, как показано (Рисунок 1). Измерьте ширину в 3 местах, чтобы обеспечить равномерный интервал.
Измерьте высоту слева и справа от рамы. Используйте эти размеры для покупки новой двери Hume.
2. Перенесите размеры проема двери, полученные на шаге 1, на новую дверь Hume. Ваша дверь может потребовать обрезки, чтобы она соответствовала проему.
Максимум 3 мм можно обрезать с любого края. На Рисунке 2 показан строгальный станок, используемый для обрезки двери.
3. Вставьте дверь в проем и затем используйте 2 клина, чтобы закрепить дверь на месте (Рисунок 3).
Вам может потребоваться помощь, чтобы переместить дверь, если она слишком тяжелая.
4. Приобретите петли по вашему выбору. Внутренние двери (не сплошные) требуют 2 петли, а для сплошных входных дверей требуются 3 или 4 петли, в зависимости от их размера. Установив дверь, зафиксированную клиньями, измерьте положение петель от косяка и перенесите их на дверь (Рисунок 4)
5. Обязательно оставьте для двери зазор 3 мм сверху и с каждой стороны. Нижнее поле может варьироваться в зависимости от напольного покрытия (Рисунок 5).
Если дверь не подходит по размеру, может потребоваться дополнительная обрезка
6. Надежно положите дверь набок и перенесите все размеры, отмеченные для петель, на сторону двери.
Используя петлю в качестве шаблона, обведите вокруг петли (Рисунок 6).
7. Зубило для петель (рисунок 7)
8. Закройте дверь сверху и снизу перед установкой (Рисунок 8). Это защитит вашу дверь от влаги.
9. Вставьте дверь в раму, чтобы проверить правильность расположения петель. Используя клинья, отрегулируйте дверцу, чтобы установить правильное положение петель, и прикрутите.
10. Ваша дверь должна свободно вращаться, если требуется окончательная регулировка, снимите дверь и завершите регулировку.
11. Ваша дверь готова к установке дверной фурнитуры и покраске.Установите дверную фурнитуру в соответствии с инструкциями производителя. Покрасьте дверь в соответствии с гарантией Hume Doors.
8 шагов по установке дверцы с сеткой
Изучите простые 8 шагов по установке дверцы с экраномКак установить дверцу с экраном
Посмотрите это видео на YouTube.Защитите окна и двери — лучшие индивидуальные экраны
Learn
Узнайте, как установить сетчатую дверь за 8 простых шагов. Простые пошаговые инструкции — это краткое изложение того, как установить сетчатую дверь на основе нашего видео.См. Объяснение Стива «Как установить сетчатую дверь». Видео очень подробное и немного длинное, но оно того стоит. Чтобы приобрести распашную дверь-ширму, перейдите по ссылке https://bestcustomscreens.com/product/swinging-screen-doors/
Это ОТЛИЧНОЕ видео !! Большое спасибо за подробные визуальные и устные инструкции. Я искал много видео. Я заменяю дверь на более старую конструкцию. Мне очень нравится ретрактор выше, чем по центру. ПРЕКРАСНАЯ РАБОТА!
Пол Б.на YouTube
Step 1
- Извлеките дверцу распашной ширмы из упаковки.
- Не используйте нож, так как можно порезать сетку экрана или поцарапать раму.
- При необходимости используйте ножницы для жести или ножницы.
Шаг 2
Установка петли U-образного профиля- Сначала измерьте высоту дверного проема на той стороне, где вы собираетесь установить U-образный канал петли.
- Во-вторых, отрежьте его до нужного размера ножовкой или ножовкой для резки алюминия.
- В-третьих, установите U-образный канал на место внутри дверной коробки.
Шаг 3
Установка дверцы экрана на U-образный канал
- Сначала осторожно вставьте дверцу сетки в шарнирный U-образный канал.
- Во-вторых, отрегулируйте так, чтобы они подходили к дверной коробке (см. Видео)
- В-третьих, установите саморезы с помощью аккумуляторной дрели внутри и снаружи канала на
Шаг 4
Установка нижнего дверного проема u-образного канала
- Сначала измерьте ширину дверцы сетчатой дверцы и обрежьте нижний канал по размеру.
- Во-вторых, вставьте нижний U-образный канал на место. При необходимости отрегулируйте.
- В-третьих, установите саморезы с помощью аккумуляторной дрели / отвертки.
Шаг 5
Сверление отверстий под крепежные детали
- Сначала прикрепите направляющую для сверления на внутренней стороне дверной рамы экрана с помощью малярной ленты.
- Во-вторых, просверлите отверстия сверлами правильного размера. См. Руководство и видео для получения более подробной информации.
Шаг 6
Установка ответной планки
- Сначала закройте дверцу экрана, чтобы направляющая соответствовала внутренней части дверной коробки.
- Во-вторых, отметьте внутренние отверстия до центра направляющей, частично просверлив винт. Не более 1/8 дюйма в глубину.
- В-третьих, установите ответную планку с помощью винтов и аккумуляторной дрели.
Шаг 7
Установка защелки
- Сначала соберите все необходимые детали, подробности смотрите в видео.
- Во-вторых, вставьте крепежный винт во внутреннюю сторону дверцы экрана.
- В-третьих, затяните крепежные винты крестовой отверткой от руки.Будьте осторожны, не затягивайте слишком сильно.
- В-четвертых, проверьте, что дверца экрана совмещена с запорной планкой. Если нет, внесите коррективы.
ИНСТРУКЦИИ ПО УСТАНОВКЕ CS LATCH
ВНИМАНИЕ: РАСПОЛОЖИТЕ УСТАНОВКУ, ЧТОБЫ ЗАЩЕЛКА НЕ ЗАСЫПИЛАСЬ ВХОДНОЙ ЗАМОК
- Для точной установки следуйте инструкциям на шаблоне для сверления
- Установите шпиндель на пружину и вставьте их во внешнюю ручку
- Протолкните этот узел через просверленные отверстия с внешней стороны двери.
- Затем поместите механизм защелки над отверстиями на внутренней стороне двери и вставьте крепежные винты через дверь в резьбовые втулки.Плотно затяните
- Установите фиксатор упора, чтобы обеспечить надежную фиксацию.
- Предварительно просверлите упор по дереву сверлом 3/32 ″ и закрепите прилагаемыми винтами.
- Когда дверь находится в закрытом положении, поместите шаблон на внутренней стороне двери на желаемой высоте, чтобы короткий загнутый конец находился напротив упора двери и длинной части шаблона против лицевой стороны двери.
- Отметьте положение трех отверстий
- С помощью сверла 1/4 ″ и 5/16 ″ просверлите указанные отверстия прямо через поверхность двери.ПРИМЕЧАНИЕ. Разверните центральное отверстие, вставив сверло и повернув его с небольшим колебанием, чтобы очистить отверстие и обеспечить полную свободу движения шпинделя. ШПИНДЕЛЬ ДОЛЖЕН БЫТЬ СВОБОДНЫ
Шаг 8
Установка доводчика двери
- Прикрепите кронштейн к верхней части дверной коробки, соберите дверной доводчик и привинтите верхнюю дверную коробку.
Эти меры позволяют существенно повысить адгезию.