ΠΠ°ΠΊ ΡΠ°ΡΡΡΠΈΡΠ°ΡΡ Π»Π°ΠΌΠΈΠ½Π°Ρ: ΠΠ°ΠΊ ΡΠ°ΡΡΡΠΈΡΠ°ΡΡ ΠΊΠΎΠ»ΠΈΡΠ΅ΡΡΠ²ΠΎ Π»Π°ΠΌΠΈΠ½Π°ΡΠ° Π½Π° ΠΊΠΎΠΌΠ½Π°ΡΡ
ΠΠ°ΠΊ ΡΠ°ΡΡΡΠΈΡΠ°ΡΡ Π»Π°ΠΌΠΈΠ½Π°Ρ, ΡΠΊΠΎΠ»ΡΠΊΠΎ Π½ΡΠΆΠ½ΠΎ Π½Π° ΠΊΠΎΠΌΠ½Π°ΡΡ, ΠΊΠ°Π»ΡΠΊΡΠ»ΡΡΠΎΡ
ΠΠΎΠΊΡΠΏΠ°Ρ Π»Π°ΠΌΠΈΠ½Π°Ρ Π΄Π»Ρ ΠΎΡΠ΄Π΅Π»ΠΊΠΈ ΠΏΠΎΠ»Π°, Π²Π°ΠΆΠ½ΠΎ Π·Π°ΡΠ°Π½Π΅Π΅ ΠΏΡΠ°Π²ΠΈΠ»ΡΠ½ΠΎ ΡΠ°ΡΡΡΠΈΡΠ°ΡΡ Π΅Π³ΠΎ ΠΊΠΎΠ»ΠΈΡΠ΅ΡΡΠ²ΠΎ, ΡΡΠΎΠ±Ρ ΠΏΠΎΠ²ΡΠΎΡΠ½ΠΎ Π½Π΅ Π΅Π·Π΄ΠΈΡΡ Π² ΠΌΠ°Π³Π°Π·ΠΈΠ½ ΠΈΠ»ΠΈ ΠΆΠ΅ Π½Π΅ ΠΏΠΎΠΊΡΠΏΠ°ΡΡ Π»ΠΈΡΠ½Π΅Π³ΠΎ. ΠΠΏΡΡΠ½ΡΠ΅ ΡΡΡΠΎΠΈΡΠ΅Π»ΠΈ Π²ΡΠ΄Π΅Π»ΡΡΡ Π΄Π²Π° ΡΠΏΠΎΡΠΎΠ±Π°, ΠΊΠ°ΠΊ ΠΌΠΎΠΆΠ½ΠΎ ΡΠ°ΠΌΠΎΡΡΠΎΡΡΠ΅Π»ΡΠ½ΠΎ ΡΠ°ΡΡΡΠΈΡΠ°ΡΡ Π»Π°ΠΌΠΈΠ½Π°Ρ Π½Π° ΠΊΠΎΠΌΠ½Π°ΡΡ, ΠΎ ΠΊΠΎΡΠΎΡΡΡ
Π½ΡΠΆΠ½ΠΎ ΠΏΠΎΠ³ΠΎΠ²ΠΎΡΠΈΡΡ ΠΏΠΎΠ΄ΡΠΎΠ±Π½Π΅Π΅. ΠΡΠ»ΠΈ ΠΆΠ΅ Π²ΡΡΡΠΈΡΡΠ²Π°ΡΡ ΡΡΠ΅Π±ΡΠ΅ΠΌΠΎΠ΅ ΠΊΠΎΠ»ΠΈΡΠ΅ΡΡΠ²ΠΎ Π»Π°ΠΌΠΈΠ½Π°ΡΠ° Π½Π΅ Ρ
ΠΎΡΠ΅ΡΡΡ, ΠΌΠΎΠΆΠ½ΠΎ Π²ΠΎΡΠΏΠΎΠ»ΡΠ·ΠΎΠ²Π°ΡΡΡΡ ΠΎΠ½Π»Π°ΠΉΠ½ ΠΊΠ°Π»ΡΠΊΡΠ»ΡΡΠΎΡΠΎΠΌ.
ΠΠ΅ΡΠ²ΡΠΉ ΡΠΏΠΎΡΠΎΠ± ΡΠ°ΡΡΠ΅ΡΠ° Π»Π°ΠΌΠΈΠ½Π°ΡΠ°
Π’ΠΎΡΠ½Π°Ρ ΠΌΠ΅ΡΠΎΠ΄ΠΈΠΊΠ°, ΠΊΠΎΡΠΎΡΠ°Ρ ΠΏΡΠΈΠΌΠ΅Π½ΡΠ΅ΡΡΡ ΠΏΡΠΎΡΠ΅ΡΡΠΈΠΎΠ½Π°Π»ΡΠ½ΡΠΌΠΈ ΠΎΡΠ΄Π΅Π»ΠΎΡΠ½ΠΈΠΊΠ°ΠΌΠΈ. ΠΠΎΠ³ΡΠ΅ΡΠ½ΠΎΡΡΠΈ ΠΏΠΎΡΠ²Π»ΡΡΡΡΡ ΡΠΎΠ»ΡΠΊΠΎ Π² ΡΠΎΠΌ ΡΠ»ΡΡΠ°Π΅, Π΅ΡΠ»ΠΈ ΠΏΡΠΈ ΡΠ°ΡΡΠ΅ΡΠ΅ ΡΠ°Π·ΠΌΠ΅ΡΠΎΠ² ΠΏΠΎΠΌΠ΅ΡΠ΅Π½ΠΈΡ Π±ΡΠ»ΠΈ Π΄ΠΎΠΏΡΡΠ΅Π½Ρ ΠΎΡΠΈΠ±ΠΊΠΈ. ΠΠΎΠ΄ΡΠΎΠ±Π½ΠΎΠ΅ ΠΏΠΎΡΡΠ½Π΅Π½ΠΈΠ΅:
- ΠΠ° ΠΎΡΠ½ΠΎΠ²Ρ Π΄Π»Ρ ΠΏΡΠΎΠ²Π΅Π΄Π΅Π½ΠΈΡ ΡΠ°ΡΡΠ΅ΡΠΎΠ² Π½ΡΠΆΠ½ΠΎ Π²Π·ΡΡΡ Π΄Π»ΠΈΠ½Ρ ΠΈ ΡΠΈΡΠΈΠ½Ρ ΠΏΠΎΠΌΠ΅ΡΠ΅Π½ΠΈΡ. ΠΠ»Ρ ΠΏΡΠΈΠΌΠ΅ΡΠ° Π²ΠΎΠ·ΡΠΌΠ΅ΠΌ ΠΏΡΠΎΠΈΠ·Π²ΠΎΠ»ΡΠ½ΡΠ΅ Π·Π½Π°ΡΠ΅Π½ΠΈΡ β 8 ΠΈ 4 ΠΌΠ΅ΡΡΠ°.
- ΠΠ΅ΡΠ²ΠΎΠ΅ Π΄Π΅ΠΉΡΡΠ²ΠΈΠ΅ β ΡΠ°ΡΡΠ΅Ρ ΠΏΠ»ΠΎΡΠ°Π΄ΠΈ ΠΏΠΎΠΌΠ΅ΡΠ΅Π½ΠΈΡ. ΠΠ»Ρ ΡΡΠΎΠ³ΠΎ Π½ΡΠΆΠ½ΠΎ ΠΏΠ΅ΡΠ΅ΠΌΠ½ΠΎΠΆΠΈΡΡ Π΄Π»ΠΈΠ½Ρ Π½Π° ΡΠΈΡΠΈΠ½Ρ. ΠΠ»ΠΎΡΠ°Π΄Ρ ΠΈΠ· ΠΏΡΠΈΠΌΠ΅ΡΠ° β 32 ΠΊΠ²/ΠΌ.
- Π‘ΡΠ΅Π΄Π½ΠΈΠ΅ ΡΠ°Π·ΠΌΠ΅ΡΡ Π»Π°ΠΌΠΈΠ½Π°ΡΠ½ΠΎΠΉ Π΄ΠΎΡΠΊΠΈ β 130 ΡΠΌ ΠΏΠΎ Π΄Π»ΠΈΠ½Π΅, 19 ΡΠΌ ΠΏΠΎ ΡΠΈΡΠΈΠ½Π΅.
- ΠΠ°Π»Π΅Π΅ Π½ΡΠΆΠ½ΠΎ ΡΠ°ΡΡΡΠΈΡΠ°ΡΡ ΠΏΠ»ΠΎΡΠ°Π΄Ρ ΠΎΠ΄Π½ΠΎΠΉ Π»Π°ΠΌΠ΅Π»ΠΈ. Π Π½Π°ΡΠ΅ΠΌ ΡΠ»ΡΡΠ°Π΅ ΠΎΠ½Π° ΡΠ°Π²Π½ΡΠ΅ΡΡΡ 0,247 ΠΊΠ²/ΠΌ.
- Π‘Π»Π΅Π΄ΡΡΡΠΈΠΉ ΡΠ°Π³ β Π΄Π΅Π»Π΅Π½ΠΈΠ΅ ΠΏΠ»ΠΎΡΠ°Π΄Ρ ΠΊΠΎΠΌΠ½Π°ΡΡ Π½Π° ΠΏΠ»ΠΎΡΠ°Π΄Ρ ΠΎΠ΄Π½ΠΎΠΉ Π΄ΠΎΡΠΊΠΈ.
- ΠΡΠ»ΠΈ ΠΎΠΊΡΡΠ³Π»ΠΈΡΡ ΠΏΠΎΠ»ΡΡΠ΅Π½Π½ΠΎΠ΅ ΡΠΈΡΠ»ΠΎ, ΠΌΠΎΠΆΠ½ΠΎ ΡΠ·Π½Π°ΡΡ, ΡΠΊΠΎΠ»ΡΠΊΠΎ Π»Π°ΠΌΠΈΠ½Π°ΡΠ° Π½ΡΠΆΠ½ΠΎ Π΄Π»Ρ ΠΊΠΎΠΌΠ½Π°ΡΡ. Π Π½Π°ΡΠ΅ΠΌ ΠΏΡΠΈΠΌΠ΅ΡΠ΅ β 130.
- ΠΠ°Π»Π΅Π΅ Π½Π΅ΠΎΠ±Ρ ΠΎΠ΄ΠΈΠΌΠΎ Π²ΡΡΡΠ½ΠΈΡΡ, ΡΠΊΠΎΠ»ΡΠΊΠΎ Π»Π°ΠΌΠΈΠ½Π°ΡΠ° Π² ΠΎΠ΄Π½ΠΎΠΉ ΠΏΠ°ΡΠΊΠ΅ (ΡΡΠΎ Π·Π°Π²ΠΈΡΠΈΡ ΠΎΡ ΠΏΡΠΎΠΈΠ·Π²ΠΎΠ΄ΠΈΡΠ΅Π»Ρ), ΠΈ Π²ΡΡΡΠΈΡΠ°ΡΡ, ΡΠΊΠΎΠ»ΡΠΊΠΎ ΠΈΡ Π½ΡΠΆΠ½ΠΎ ΠΊΡΠΏΠΈΡΡ.
ΠΡΠ»ΠΈ ΠΏΠΎΠΌΠ΅ΡΠ΅Π½ΠΈΠ΅ Π½Π΅ΡΠΎΠ²Π½ΠΎΠ΅, ΠΈΠΌΠ΅Π΅Ρ Π½ΠΈΡΠΈ, ΡΠΎ Π΄Π»Ρ Π±Π΅Π·ΠΎΡΠΈΠ±ΠΎΡΠ½ΠΎΠ³ΠΎ ΡΠ°ΡΡΠ΅ΡΠ° Π»Π°ΠΌΠΈΠ½ΠΈΡΠ° ΠΈΡ ΠΏΠ»ΠΎΡΠ°Π΄Ρ Π½ΡΠΆΠ½ΠΎ ΡΠ°ΡΡΡΠΈΡΡΠ²Π°ΡΡ ΠΎΡΠ΄Π΅Π»ΡΠ½ΠΎ, ΠΏΠΎΡΠ»Π΅ ΡΠ΅Π³ΠΎ ΡΡΠΌΠΌΠΈΡΠΎΠ²Π°ΡΡ Ρ ΠΏΠ»ΠΎΡΠ°Π΄ΡΡ Π²ΡΠ΅ΠΉ ΠΊΠΎΠΌΠ½Π°ΡΡ.
ΠΡΠΎΡΠΎΠΉ ΡΠΏΠΎΡΠΎΠ± ΡΠ°ΡΡΠ΅ΡΠ°
ΠΡΠΎΡ ΠΌΠ΅ΡΠΎΠ΄ ΡΠ°ΡΡΠ΅ΡΠ°, ΡΠΊΠΎΠ»ΡΠΊΠΎ Π½ΡΠΆΠ½ΠΎ Π»Π°ΠΌΠΈΠ½Π°ΡΠ° Π½Π° ΠΊΠΎΠΌΠ½Π°ΡΡ, ΠΌΠ΅Π½Π΅Π΅ ΠΏΠΎΠΏΡΠ»ΡΡΠ΅Π½. ΠΡΠ»ΠΈ Π²ΡΡΡΠΈΡΡΠ²Π°ΡΡ ΡΠΎΠ»ΡΠΊΠΎ ΡΡΠΈΠΌ ΡΠΏΠΎΡΠΎΠ±ΠΎΠΌ, ΡΠΎ ΡΠ°ΡΡΠΎ Π²ΠΎΠ·Π½ΠΈΠΊΠ°ΡΡ ΠΏΠΎΠ³ΡΠ΅ΡΠ½ΠΎΡΡΠΈ ΠΈΠ»ΠΈ ΠΎΡΠΈΠ±ΠΊΠΈ. ΠΡΠ°ΠΏΡ ΠΏΡΠΎΠ²Π΅Π΄Π΅Π½ΠΈΡ ΡΠ°ΡΡΠ΅ΡΠΎΠ²:
- ΠΠ·Π½Π°ΡΠ°Π»ΡΠ½ΠΎ Π½ΡΠΆΠ½ΠΎ ΠΈΠ·ΠΌΠ΅ΡΠΈΡΡ Π΄Π»ΠΈΠ½Ρ ΠΏΠΎΠΌΠ΅ΡΠ΅Π½ΠΈΡ, ΠΏΡΠΈΠΊΠΈΠ½ΡΡΡ, ΡΠΊΠΎΠ»ΡΠΊΠΎ Π»Π°ΠΌΠΈΠ½Π°ΡΠ° Π½ΡΠΆΠ½ΠΎ Π² ΠΎΠ΄ΠΈΠ½ ΡΡΠ΄ ΠΏΠΎ Π΄Π»ΠΈΠ½Π΅. ΠΠ°ΠΏΡΠΈΠΌΠ΅Ρ, Π΄Π»ΠΈΠ½Π° ΠΊΠΎΠΌΠ½Π°ΡΡ β 6 ΠΌΠ΅ΡΡΠΎΠ², Π° Π΄Π»ΠΈΠ½Π° ΠΎΠ΄Π½ΠΎΠΉ ΠΏΠ»Π°Π½ΠΊΠΈ β 1,3 ΠΌΠ΅ΡΡΠ°.
ΠΠΎΠ»ΡΡΠ°Π΅ΡΡΡ, ΠΏΠΎ Π΄Π»ΠΈΠ½Π΅ Π½ΡΠΆΠ½ΠΎ ΡΡΡΡ Π±ΠΎΠ»Π΅Π΅ 4,5 Π΄ΠΎΡΠΎΠΊ. - Π‘Π»Π΅Π΄ΡΡΡΠΈΠΌ ΡΡΠ°ΠΏΠΎΠΌ Π½ΡΠΆΠ½ΠΎ ΠΏΠΎΡΡΠΈΡΠ°ΡΡ, ΡΠΊΠΎΠ»ΡΠΊΠΎ Π΄ΠΎΡΠΎΠΊ Π½ΡΠΆΠ½ΠΎ Π΄Π»Ρ ΠΎΠ΄Π½ΠΎΠ³ΠΎ ΡΡΠ΄Π° ΠΏΠΎ ΡΠΈΡΠΈΠ½Π΅ ΠΊΠΎΠΌΠ½Π°ΡΡ. ΠΠ°ΠΏΡΠΈΠΌΠ΅Ρ, ΡΠΈΡΠΈΠ½Π° ΠΏΠΎΠΌΠ΅ΡΠ΅Π½ΠΈΡ 4 ΠΌΠ΅ΡΡΠ°, Π° ΠΏΠ»Π°Π½ΠΊΠΈ β 0,19 ΠΌ. ΠΡΠΆΠ½ΠΎ ΠΏΠΎΠ΄Π΅Π»ΠΈΡΡ ΡΡΠΈ ΠΏΠ°ΡΠ°ΠΌΠ΅ΡΡΡ ΠΌΠ΅ΠΆΠ΄Ρ ΡΠΎΠ±ΠΎΠΉ. ΠΠΎΠ»ΡΡΠ°Π΅ΡΡΡ 21 Π΄ΠΎΡΠΊΠ°.
- ΠΠΎΡΠ»Π΅Π΄Π½ΠΈΠΉ ΡΡΠ°ΠΏ ΠΏΡΠΎΠ²Π΅Π΄Π΅Π½ΠΈΡ ΡΠ°ΡΡΠ΅ΡΠ° Π»Π°ΠΌΠΈΠ½Π°ΡΠ° β ΡΠΌΠ½ΠΎΠΆΠ΅Π½ΠΈΠ΅ Π΄Π²ΡΡ ΠΏΠΎΠ»ΡΡΠ΅Π½Π½ΡΡ ΡΠ΅Π·ΡΠ»ΡΡΠ°ΡΠΎΠ² ΠΌΠ΅ΠΆΠ΄Ρ ΡΠΎΠ±ΠΎΠΉ.
ΠΠΎΠ»ΡΡΠ΅Π½Π½ΠΎΠ΅ ΡΠΈΡΠ»ΠΎ β ΠΊΠΎΠ»ΠΈΡΠ΅ΡΡΠ²ΠΎ Π»Π°ΠΌΠΈΠ½Π°ΡΠ°, ΠΊΠΎΡΠΎΡΠΎΠ΅ ΠΏΠΎΡΡΠ΅Π±ΡΠ΅ΡΡΡ Π΄Π»Ρ ΠΏΠΎΠΊΡΡΡΠΈΡ ΠΏΠΎΠ»Π° Π² ΠΊΠΎΠΌΠ½Π°ΡΠ΅. ΠΠ°Π»Π΅Π΅ ΠΎΡΡΠ°Π½Π΅ΡΡΡ Π²ΡΡΡΠΈΡΠ°ΡΡ, ΡΠΊΠΎΠ»ΡΠΊΠΎ ΠΏΠ°ΡΠ΅ΠΊ Π»Π°ΠΌΠΈΠ½Π°ΡΠ° Π½ΡΠΆΠ½ΠΎ ΠΊΡΠΏΠΈΡΡ.
Π‘ΠΎΠ²Π΅ΡΡ ΡΠΏΠ΅ΡΠΈΠ°Π»ΠΈΡΡΠΎΠ²
ΠΡΠ΅ΠΆΠ΄Π΅ ΡΠ΅ΠΌ Π½Π°ΡΠΈΠ½Π°ΡΡ ΡΠ°ΡΡΠ΅Ρ Π»Π°ΠΌΠΈΠ½Π°ΡΠ° Π΄Π»Ρ ΠΎΠ΄Π½ΠΎΠΉ ΠΊΠΎΠΌΠ½Π°ΡΡ ΠΈΠ»ΠΈ ΡΠ΅Π»ΠΎΠ³ΠΎ Π΄ΠΎΠΌΠ°, ΡΠ΅ΠΊΠΎΠΌΠ΅Π½Π΄ΡΠ΅ΡΡΡ ΠΏΠΎΡΠ»ΡΡΠ°ΡΡ ΡΠΎΠ²Π΅ΡΡ ΠΎΠΏΡΡΠ½ΡΡ ΡΡΡΠΎΠΈΡΠ΅Π»Π΅ΠΉ, ΡΡΠΎΠ±Ρ Π΄ΠΎΠΏΡΡΠΊΠ°ΡΡ ΠΌΠ΅Π½ΡΡΠ΅ ΠΎΡΠΈΠ±ΠΎΠΊ:
- ΠΠ΅ΡΠ΅Π΄ Π½Π°ΡΠ°Π»ΠΎΠΌ ΠΏΡΠΎΠ²Π΅Π΄Π΅Π½ΠΈΡ ΡΠ°ΡΡΠ΅ΡΠ°, Π»ΡΡΡΠ΅ Π²ΡΠ΅Π³ΠΎ Π½Π°ΡΠΈΡΠΎΠ²Π°ΡΡ ΠΊΠΎΠΌΠ½Π°ΡΡ Π½Π° Π»ΠΈΡΡΠ΅ Π±ΡΠΌΠ°Π³ΠΈ, ΡΠΊΠ°Π·Π°ΡΡ Π²ΡΠ΅ ΡΠΎΡΠ½ΡΠ΅ ΡΠ°Π·ΠΌΠ΅ΡΡ. ΠΠΎΡΠ»Π΅ ΡΡΠΎΠ³ΠΎ ΡΡΠΈΡΠ°ΡΡ ΠΊΠΎΠ»ΠΈΡΠ΅ΡΡΠ²ΠΎ Π»Π°ΠΌΠ΅Π»Π΅ΠΉ Π±ΡΠ΄Π΅Ρ Π³ΠΎΡΠ°Π·Π΄ΠΎ Π»Π΅Π³ΡΠ΅.
- Π§ΡΠΎΠ±Ρ ΡΠΎΡΠ½ΠΎ ΡΠ°ΡΡΡΠΈΡΠ°ΡΡ Π»Π°ΠΌΠΈΠ½Π°Ρ, Π²Π°ΠΆΠ½ΠΎ ΠΈΠ·ΠΌΠ΅ΡΡΡΡ Π΄Π»ΠΈΠ½Ρ ΠΈ ΡΠΈΡΠΈΠ½Ρ ΠΏΠΎΠΌΠ΅ΡΠ΅Π½ΠΈΡ ΠΏΠΎ ΠΏΠΎΠ²Π΅ΡΡ Π½ΠΎΡΡΠΈ ΠΏΠΎΠ»Π°. Π§Π°ΡΡΠΎ Π² ΡΡΠ°ΡΡΡ ΠΊΠ²Π°ΡΡΠΈΡΠ°Ρ ΡΡΠ΅Π½Ρ Π½Π΅ΡΠΎΠ²Π½ΡΠ΅. ΠΠ·-Π·Π° ΡΡΠΎΠ³ΠΎ, Π΅ΡΠ»ΠΈ ΡΠ½ΡΡΡ ΡΠ°Π·ΠΌΠ΅ΡΡ Π²ΡΡΠ΅ ΠΏΠΎΠ»Π°, ΠΌΠΎΠΆΠ½ΠΎ ΠΎΡΠΊΠ»ΠΎΠ½ΠΈΡΡΡΡ ΠΎΡ ΡΠΎΡΠ½ΡΡ ΠΏΠΎΠΊΠ°Π·Π°ΡΠ΅Π»Π΅ΠΉ, Π΄ΠΎΠΏΡΡΡΠΈΡΡ ΠΎΡΠΈΠ±ΠΊΡ.
- ΠΠΎ Π²ΡΠ΅ΠΌΡ Π²ΡΠ±ΠΎΡΠ° Π»Π°ΠΌΠΈΠ½Π°ΡΠ° Π½ΡΠΆΠ½ΠΎ Π²Π½ΠΈΠΌΠ°ΡΠ΅Π»ΡΠ½ΠΎ ΡΠ°ΡΡΠΌΠΎΡΡΠ΅ΡΡ ΠΈΠ½ΡΠΎΡΠΌΠ°ΡΠΈΡ, ΡΠΊΠ°Π·ΡΠ²Π°Π΅ΠΌΡΡ Π½Π° ΡΠΏΠ°ΠΊΠΎΠ²ΠΊΠ΅. Π§Π°ΡΡΠΎ ΠΎΠ± ΠΎΡΠΎΠ±Π΅Π½Π½ΠΎΡΡΡΡ ΠΌΠ°ΡΠ΅ΡΠΈΠ°Π»Π° ΡΠΊΠ°Π·ΡΠ²Π°ΡΡ Ρ ΠΏΠΎΠΌΠΎΡΡΡ ΡΠΏΠ΅ΡΠΈΠ°Π»ΡΠ½ΡΡ Π·Π½Π°ΡΠΊΠΎΠ², ΡΠ°ΡΡΠΈΡΡΠΎΠ²ΠΊΡ ΠΊΠΎΡΠΎΡΡΡ ΠΌΠΎΠΆΠ½ΠΎ Π½Π°ΠΉΡΠΈ Π² ΠΈΠ½ΡΠ΅ΡΠ½Π΅ΡΠ΅.
- Π§Π΅ΠΌ Π²ΡΡΠ΅ ΠΊΠ»Π°ΡΡ ΠΈΠ·Π½ΠΎΡΠΎΡΡΡΠΎΠΉΡΠΈΠ²ΠΎΡΡΠΈ Π»Π°ΠΌΠΈΠ½Π°ΡΠ°, ΡΠ΅ΠΌ Π΄ΠΎΡΠΎΠΆΠ΅ ΠΎΠ½ ΡΡΠΎΠΈΡ. ΠΠ΄Π½Π°ΠΊΠΎ ΡΡΡ Π³Π°ΡΠ°Π½ΡΠΈΡΡΠ΅ΡΡΡ ΠΈ ΠΊΠ°ΡΠ΅ΡΡΠ²ΠΎ ΠΌΠ°ΡΠ΅ΡΠΈΠ°Π»Π°, ΠΈ Π΅Π³ΠΎ Π΄ΠΎΠ»Π³ΠΎΠ²Π΅ΡΠ½ΠΎΡΡΡ.
- Π Π΅ΠΊΠΎΠΌΠ΅Π½Π΄ΡΠ΅ΡΡΡ ΠΏΠΎΠΊΡΠΏΠ°ΡΡ Π½Π° ΠΎΠ΄Π½Ρ ΠΏΠ°ΡΠΊΡ Π»Π°ΠΌΠΈΠ½Π°ΡΠ° Π±ΠΎΠ»ΡΡΠ΅, Π΅ΡΠ»ΠΈ ΠΎΠ½ Π½ΡΠΆΠ΅Π½ Π΄Π»Ρ Π²ΡΠ΅Ρ ΠΊΠΎΠΌΠ½Π°Ρ Π² ΠΊΠ²Π°ΡΡΠΈΡΠ΅ ΠΈΠ»ΠΈ ΡΠ°ΡΡΠ½ΠΎΠΌ Π΄ΠΎΠΌΠ΅. ΠΡΠ»ΠΈ ΠΆΠ΅ ΠΏΠΎΠΌΠ΅ΡΠ΅Π½ΠΈΠ΅ Π½Π΅Π±ΠΎΠ»ΡΡΠΎΠ΅, ΠΏΠΎΠ½Π°Π΄ΠΎΠ±ΠΈΡΡΡ 2-3 Π΄ΠΎΠΏΠΎΠ»Π½ΠΈΡΠ΅Π»ΡΠ½ΡΡ ΠΏΠ»Π°Π½ΠΊΠΈ. ΠΠ½ΠΈ Π½ΡΠΆΠ½Ρ Π΄Π»Ρ ΡΠΎΠ³ΠΎ, ΡΡΠΎΠ±Ρ Π±ΡΠ»Π° Π²ΠΎΠ·ΠΌΠΎΠΆΠ½ΠΎΡΡΡ Π·Π°ΠΌΠ΅Π½ΠΈΡΡ Π½Π΅ΠΊΠΎΡΠΎΡΡΠ΅ Π»Π°ΠΌΠ΅Π»ΠΈ ΠΏΡΠΈ ΠΈΡ Π²ΠΎΠ·ΠΌΠΎΠΆΠ½ΠΎΠΌ ΠΏΠΎΠ²ΡΠ΅ΠΆΠ΄Π΅Π½ΠΈΠΈ, Π±ΡΠ°ΠΊΠ΅.
- ΠΡΠ΅ΠΆΠ΄Π΅ ΡΠ΅ΠΌ Π½Π°ΡΠΈΠ½Π°ΡΡ ΡΠΈΠ½ΠΈΡΠ½ΡΡ ΠΎΡΠ΄Π΅Π»ΠΊΡ ΠΏΠΎΠ»Π°, Π½ΡΠΆΠ½ΠΎ Π·Π°ΠΊΠΎΠ½ΡΠΈΡΡ Ρ ΠΎΠ±Π»ΠΈΡΠΎΠ²ΠΊΠΎΠΉ ΠΏΠΎΡΠΎΠ»ΠΊΠ°, ΡΡΠ΅Π½.
- ΠΡΠΈ ΠΌΠ½ΠΎΠ³ΠΎΡΠΈΡΠ»Π΅Π½Π½ΡΡ
ΡΠ³Π»Π°Ρ
ΠΈ ΠΏΡΠΎΡΠΈΡ
Π²ΡΡΡΡΠΏΠΎΠ², ΠΎΠ±ΡΡΠ»Π°Π²Π»ΠΈΠ²Π°Π΅ΠΌΡΡ
ΠΎΡΠΎΠ±Π΅Π½Π½ΠΎΡΡΡΠΌΠΈ ΠΈΠ½ΡΠ΅ΡΡΠ΅ΡΠ°, ΠΏΠ»Π°Π½ΠΈΡΠΎΠ²ΠΊΠΈ, Π½ΡΠΆΠ½ΠΎ Π΄ΠΎΠ±Π°Π²ΠΈΡΡ Π΄ΠΎΠΏΠΎΠ»Π½ΠΈΡΠ΅Π»ΡΠ½ΠΎΠ΅ ΠΊΠΎΠ»ΠΈΡΠ΅ΡΡΠ²Π° Π»Π°ΠΌΠΈΠ½Π°ΡΠ° Π΄Π»Ρ ΠΏΠΎΠ΄ΡΠ΅Π·ΠΎΠΊ.

Π ΠΏΠΎΡΠ»Π΅Π΄Π½Π΅Π΅. Π§ΡΠΎΠ±Ρ Π½Π΅ ΠΎΡΠΈΠ±ΠΈΡΡΡΡ, Π²ΡΡΡΠΈΡΡΠ²Π°Ρ, ΡΠΊΠΎΠ»ΡΠΊΠΎ Π»Π°ΠΌΠΈΠ½Π°ΡΠ° Π½ΡΠΆΠ½ΠΎ Π½Π° ΠΊΠΎΠΌΠ½Π°ΡΡ, Π»ΡΡΡΠ΅ ΠΏΠ΅ΡΠ΅ΠΏΡΠΎΠ²Π΅ΡΠΈΡΡΡΡ Π²ΡΠ΅ΠΌΠΈ ΡΠΏΠΎΡΠΎΠ±Π°ΠΌΠΈ ΡΠ°ΡΡΠ΅ΡΠ°.
Π Π°ΡΡΠ΅ΡΡ Π² ΠΌΠ°Π³Π°Π·ΠΈΠ½Π΅
Π ΠΏΡΠΈΠ½ΡΠΈΠΏΠ΅, ΡΠ°ΡΡΡΠΈΡΠ°ΡΡ Π»Π°ΠΌΠΈΠ½Π°Ρ ΠΌΠΎΠΆΠ½ΠΎ ΠΈ Π² ΠΌΠ°Π³Π°Π·ΠΈΠ½Π΅. Π’Π°ΠΌ Π΅ΡΡΡ Π²ΠΎΠ·ΠΌΠΎΠΆΠ½ΠΎΡΡΡ Π²ΠΎΠΎΡΠΈΡ ΠΏΠΎΡΠΌΠΎΡΡΠ΅ΡΡ Π²ΡΠ±ΠΈΡΠ°Π΅ΠΌΠΎΠ΅ Π½Π°ΠΏΠΎΠ»ΡΠ½ΠΎΠ΅ ΠΏΠΎΠΊΡΡΡΠΈΠ΅, ΠΏΠΎΡΡΠΎΠ³Π°ΡΡ ΠΈ Π²ΡΠ±ΡΠ°ΡΡ ΡΠΎΠΎΡΠ²Π΅ΡΡΡΠ²ΡΡΡΠΈΠΉ ΡΠΎΡΡ.
ΠΠ° ΡΠΎΡΡΠ΅ ΡΠΏΠ°ΠΊΠΎΠ²ΠΊΠΈ Π²ΡΠ±ΡΠ°Π½Π½ΠΎΠ³ΠΎ Π»Π°ΠΌΠΈΠ½Π°ΡΠ° Π½Π°Ρ ΠΎΠ΄ΠΈΠΌ ΡΠΊΠ°Π·Π°Π½ΠΈΠ΅, ΡΠΊΠΎΠ»ΡΠΊΠΎ ΠΊΠ²Π°Π΄ΡΠ°ΡΠ½ΡΡ ΠΌΠ΅ΡΡΠΎΠ² ΠΏΠΎΠΊΡΡΡΠΈΡ Π² Π½Π΅ΠΉ Π½Π°Ρ ΠΎΠ΄ΠΈΡΡΡ. ΠΠΎΠΊΠ°Π·Π°ΡΠ΅Π»Ρ ΠΏΠ»ΠΎΡΠ°Π΄ΠΈ ΠΏΠΎΠ»ΠΎΠ²ΠΎΠ³ΠΎ ΠΏΠΎΠΊΡΡΡΠΈΡ Π΄Π΅Π»ΠΈΠΌ Π½Π° ΠΊΠΎΠ»ΠΈΡΠ΅ΡΡΠ²ΠΎ ΠΊΠ²Π°Π΄ΡΠ°ΡΠ½ΡΡ ΠΌΠ΅ΡΡΠΎΠ² Π² ΠΊΠΎΠ½ΠΊΡΠ΅ΡΠ½ΠΎΠΉ ΡΠΏΠ°ΠΊΠΎΠ²ΠΊΠ΅.
ΠΡΠ»ΠΈ ΠΏΠΎΠ»ΡΡΠΈΠ»ΠΎΡΡ Π½Π΅ΡΠΎΠ²Π½ΠΎΠ΅ ΡΠΈΡΠ»ΠΎ ΡΠΏΠ°ΠΊΠΎΠ²ΠΎΠΊ, ΠΎΠΊΡΡΠ³Π»ΡΠ΅ΠΌ ΠΏΠΎΠΊΠ°Π·Π°ΡΠ΅Π»Ρ Π² Π±ΠΎΠ»ΡΡΡΡ ΡΡΠΎΡΠΎΠ½Ρ. Π’Π΅ΠΏΠ΅ΡΡ ΠΌΡ Π·Π½Π°Π΅ΠΌ, ΡΠΊΠΎΠ»ΡΠΊΠΎ ΠΏΠ°ΡΠ΅ΠΊ Π»Π°ΠΌΠΈΠ½ΠΈΡΠΎΠ²Π°Π½Π½ΠΎΠ³ΠΎ ΠΏΠΎΠΊΡΡΡΠΈΡ Π΄Π»Ρ ΠΏΠΎΠ»Π° Π² Π½Π°ΡΡ ΠΊΠΎΠΌΠ½Π°ΡΡ ΡΡΠ΅Π±ΡΠ΅ΡΡΡ ΠΊΡΠΏΠΈΡΡ.
ΠΡΠΈ Π²ΠΎΠ·Π½ΠΈΠΊΠ½ΠΎΠ²Π΅Π½ΠΈΠΈ ΡΠ»ΠΎΠΆΠ½ΠΎΡΡΠ΅ΠΉ Ρ ΡΠ°ΠΌΠΎΡΡΠΎΡΡΠ΅Π»ΡΠ½ΡΠΌ ΡΠ°ΡΡΠ΅ΡΠΎΠΌ, ΡΠ΅ΠΊΠΎΠΌΠ΅Π½Π΄ΡΠ΅ΡΡΡ Π²ΠΎΡΠΏΠΎΠ»ΡΠ·ΠΎΠ²Π°ΡΡΡΡ ΠΎΠ½Π»Π°ΠΉΠ½-ΠΊΠ°Π»ΡΠΊΡΠ»ΡΡΠΎΡΠΎΠΌ.
ΠΠ½Π»Π°ΠΉΠ½ ΠΊΠ°Π»ΡΠΊΡΠ»ΡΡΠΎΡ ΡΠ°ΡΡΠ΅ΡΠ° Π»Π°ΠΌΠΈΠ½Π°ΡΠ°
ΠΠ°ΠΊ ΡΠ°ΡΡΡΠΈΡΠ°ΡΡ ΠΊΠΎΠ»ΠΈΡΠ΅ΡΡΠ²ΠΎ Π»Π°ΠΌΠΈΠ½Π°ΡΠ° Π½Π° ΠΊΠΎΠΌΠ½Π°ΡΡ: ΡΠΎΠ²Π΅ΡΡ ΡΠΊΡΠΏΠ΅ΡΡΠΎΠ²
ΠΠ°ΠΌΠΈΠ½Π°Ρ ΡΠ΅Π°Π»ΠΈΠ·ΡΠ΅ΡΡΡ ΡΠΏΠ°ΠΊΠΎΠ²ΠΊΠ°ΠΌΠΈ. Π ΡΡΠ΅Π΄Π½Π΅ΠΌ, ΠΎΠ΄Π½Π° ΡΠΏΠ°ΠΊΠΎΠ²ΠΊΠ° ΡΠ°ΡΡΡΠΈΡΠ°Π½Π° Π½Π° 2 ΠΊΠ². ΠΌΠ΅ΡΡΠ°. Π‘Π»ΠΎΠΆΠ½ΠΎΡΡΡ Π² ΡΠΎΠΌ, ΡΡΠΎ Π² Π½Π°Π±ΠΎΡΠ°Ρ ΠΎΡ ΡΠ°Π·Π½ΡΡ ΠΏΡΠΎΠΈΠ·Π²ΠΎΠ΄ΠΈΡΠ΅Π»Π΅ΠΉ ΠΊΠΎΠ»ΠΈΡΠ΅ΡΡΠ²ΠΎ Π΄ΠΎΡΠ΅ΡΠ΅ΠΊ ΡΠ°Π·Π»ΠΈΡΠ°Π΅ΡΡΡ. ΠΡΠΎΠΌΠ΅ ΡΠΎΠ³ΠΎ, ΠΏΠΎΠ΄ Π²ΠΎΠ·Π΄Π΅ΠΉΡΡΠ²ΠΈΠ΅ΠΌ Π²Π»Π°Π³ΠΈ ΠΈΠ»ΠΈ ΠΈΠ·-Π·Π° Π½Π΅ΠΏΡΠ°Π²ΠΈΠ»ΡΠ½ΠΎΠΉ ΡΡΠ°Π½ΡΠΏΠΎΡΡΠΈΡΠΎΠ²ΠΊΠΈ, Π»Π°ΠΌΠΈΠ½Π°Ρ Π΄Π΅ΡΠΎΡΠΌΠΈΡΡΠ΅ΡΡΡ β ΠΏΠ»ΠΎΡΠ°Π΄Ρ ΠΏΠΎΠΊΡΡΡΠΈΡ ΡΠΎΠΆΠ΅ ΠΌΠ΅Π½ΡΠ΅ΡΡΡ.Β
ΠΡΠ½ΠΎΠ²Π½ΠΎΠΉ Π²ΠΎΠΏΡΠΎΡ ΠΏΡΠΈ ΠΏΠΎΠΊΡΠΏΠΊΠ΅ ΡΠ²ΡΠ·Π°Π½ Ρ ΡΠ°ΡΡΠ΅ΡΠΎΠΌ Π½Π΅ΠΎΠ±Ρ ΠΎΠ΄ΠΈΠΌΠΎΠ³ΠΎ ΠΊΠΎΠ»ΠΈΡΠ΅ΡΡΠ²Π° Π»Π°ΠΌΠΈΠ½Π°ΡΠ°. ΠΡ ΡΠ°ΡΡΠΊΠ°ΠΆΠ΅ΠΌ ΠΎ Π΄Π²ΡΡ ΡΠ°ΠΌΡΡ ΡΠ΄ΠΎΠ±Π½ΡΡ ΠΈ ΡΠΎΡΠ½ΡΡ ΡΠΏΠΎΡΠΎΠ±Π°Ρ ΡΠ·Π½Π°ΡΡ, ΡΠΊΠΎΠ»ΡΠΊΠΎ ΡΠΏΠ°ΠΊΠΎΠ²ΠΎΠΊ Π²Π·ΡΡΡ Π΄Π»Ρ ΠΎΡΠΎΡΠΌΠ»Π΅Π½ΠΈΡ ΠΎΠ΄Π½ΠΎΠΉ ΠΊΠΎΠΌΠ½Π°ΡΡ.
ΠΠ΅ΡΠ²ΡΠΉ Π²Π°ΡΠΈΠ°Π½Ρ
ΠΠ½ ΠΏΡΠΎΡΠ΅, Π½ΠΎ ΠΈΠΌΠ΅Π΅Ρ Π½Π΅ΠΊΠΎΡΠΎΡΡΠ΅ ΠΏΠΎΠ³ΡΠ΅ΡΠ½ΠΎΡΡΠΈ. ΠΠΎΡΠΏΠΎΠ»ΡΠ·ΡΠΉΡΠ΅ΡΡ ΡΡΠΈΠΌ ΡΠΏΠΎΡΠΎΠ±ΠΎΠΌ, Π΅ΡΠ»ΠΈ Π² ΠΊΠΎΠΌΠ½Π°ΡΠ΅ ΡΠΎΠ²Π½ΡΠ΅ ΡΡΠ΅Π½Ρ ΠΈ Π½Π΅Ρ Π²ΡΡΡΡΠΏΠΎΠ² ΠΈΠ»ΠΈ Π½ΠΈΡ.
Π‘Π½Π°ΡΠ°Π»Π° ΡΠ°ΡΡΡΠΈΡΠ°Π΅ΠΌ ΠΏΠ»ΠΎΡΠ°Π΄Ρ ΠΏΠΎΠΌΠ΅ΡΠ΅Π½ΠΈΡ. ΠΠ»Ρ ΠΏΡΠΈΠΌΠ΅ΡΠ° Π²ΠΎΠ·ΡΠΌΠ΅ΠΌ ΡΡΠ°Π½Π΄Π°ΡΡΠ½ΡΡ ΠΊΠΎΠΌΠ½Π°ΡΡ, Π΄Π»ΠΈΠ½Π° ΠΊΠΎΡΠΎΡΠΎΠΉ β 6,5 ΠΌΠ΅ΡΡΠΎΠ², Π° ΡΠΈΡΠΈΠ½Π° β 3,5.
- ΠΏΠ΅ΡΠ΅ΠΌΠ½ΠΎΠΆΠΈΠΌ Π΄Π»ΠΈΠ½Ρ Π½Π° ΡΠΈΡΠΈΠ½Ρ: 6,5*3,5=22,75 ΠΊΠ². ΠΌΠ΅ΡΡΠ°.
- Ρ Π»ΡΠ±ΠΎΠΉ ΠΊΠΎΠΌΠ½Π°ΡΡ Π΅ΡΡΡ Π½Π΅Π±ΠΎΠ»ΡΡΠΎΠΉ ΡΡΠ°ΡΡΠΎΠΊ, ΡΠΎΠ΅Π΄ΠΈΠ½ΡΡΡΠΈΠΉ Π΅Π΅ Ρ ΠΊΠΎΡΠΈΠ΄ΠΎΡΠΎΠΌ. ΠΡΡΡΡ Π΅Π³ΠΎ ΡΠ°Π·ΠΌΠ΅ΡΡβ 1 ΠΌ Π½Π° 50 ΡΠΌ. ΠΠ»ΠΎΡΠ°Π΄Ρ ΡΠ°ΠΊΠΎΠ³ΠΎ ΡΡΠ°ΡΡΠΊΠ° Π±ΡΠ΄Π΅Ρ ΡΠ°Π²Π½Π° 0,5 ΠΌ2 (1*0,5).

- ΡΠ»ΠΎΠΆΠΈΠΌ Π΄Π²Π° ΡΠ΅Π·ΡΠ»ΡΡΠ°ΡΠ°, ΡΡΠΎΠ±Ρ ΡΠ·Π½Π°ΡΡ ΠΎΠ±ΡΡΡ ΠΏΠ»ΠΎΡΠ°Π΄Ρ. 22,75+0,5=23,25 ΠΌ2.
Π’Π΅ΠΏΠ΅ΡΡ ΡΠ·Π½Π°Π΅ΠΌ, ΡΠΊΠΎΠ»ΡΠΊΠΎ ΡΠΏΠ°ΠΊΠΎΠ²ΠΎΠΊ Π½ΡΠΆΠ½ΠΎ Π΄Π»Ρ ΠΊΠΎΠΌΠ½Π°ΡΡ Ρ ΡΠ°ΠΊΠΈΠΌΠΈ ΠΏΠ°ΡΠ°ΠΌΠ΅ΡΡΠ°ΠΌΠΈ. ΠΡΠ΅Π΄ΠΏΠΎΠ»ΠΎΠΆΠΈΠΌ, ΠΌΡ Π²ΡΠ±ΡΠ°Π»ΠΈ Π±Π΅Π»ΡΠ³ΠΈΠΉΡΠΊΠΈΠΉ Π»Π°ΠΌΠΈΠ½Π°Ρ Balterio Xpressions. ΠΠ΄Π½Π° ΠΏΠ°ΡΠΊΠ° ΡΠ°ΡΡΡΠΈΡΠ°Π½Π° Π½Π° ΠΏΠΎΠΊΡΡΡΠΈΠ΅ 2,162 ΠΊΠ². ΠΌΠ΅ΡΡΠΎΠ² ΠΈ ΡΠΎΠ΄Π΅ΡΠΆΠΈΡ 9 Π΄ΠΎΡΠΎΠΊ. Π Π°Π·Π΄Π΅Π»ΠΈΠΌ ΠΎΠ±ΡΡΡ ΠΏΠ»ΠΎΡΠ°Π΄Ρ ΠΊΠΎΠΌΠ½Π°ΡΡ Π½Π° ΠΏΠ»ΠΎΡΠ°Π΄Ρ, ΡΠΊΠ°Π·Π°Π½Π½ΡΡ Π½Π° ΡΠΏΠ°ΠΊΠΎΠ²ΠΊΠ΅. ΠΠΎΠ»ΡΡΠ°Π΅ΠΌ β 23,25/2,162=10,75. ΠΠΎΠ»ΡΡΠΈΠ²ΡΠ΅Π΅ΡΡ ΡΠΈΡΠ»ΠΎ ΡΠ°Π²Π½ΠΎ Π½Π΅ΠΎΠ±Ρ ΠΎΠ΄ΠΈΠΌΠΎΠΌΡ ΠΊΠΎΠ»ΠΈΡΠ΅ΡΡΠ²Ρ ΠΏΠ°ΡΠ΅ΠΊ. ΠΠΊΡΡΠ³Π»ΠΈΠΌ Π΅Π³ΠΎ Π² Π±ΠΎΠ»ΡΡΡΡ ΡΡΠΎΡΠΎΠ½Ρ: ΡΠΎΠ³Π΄Π° ΠΌΠ°ΡΠ΅ΡΠΈΠ°Π»Π° ΡΠΎΡΠ½ΠΎ Ρ Π²Π°ΡΠΈΡ.
ΠΡΠΈ Π»ΡΠ±ΠΎΠΌ ΡΠ΅ΠΌΠΎΠ½ΡΠ΅ Π½ΡΠΆΠ½ΠΎ ΡΡΠΈΡΡΠ²Π°ΡΡ Π΄ΠΎΠ±Π°Π²Π»Π΅Π½Π½ΡΠΉ ΡΠ°ΡΡ ΠΎΠ΄. ΠΠ½ Π²ΠΊΠ»ΡΡΠ°Π΅Ρ Π±ΡΠ°ΠΊ, Π²Π΅Π»ΠΈΡΠΈΠ½Ρ ΡΠΌΠ΅ΡΠ΅Π½ΠΈΡ, Π½Π΅ΡΠ΄Π°ΡΠ½ΡΡ ΡΠ°Π·ΠΌΠ΅ΡΠΊΡ ΠΈ ΠΏΡΠΎΡΠΈΠ΅ ΠΏΠΎΠ³ΡΠ΅ΡΠ½ΠΎΡΡΠΈ. ΠΠ»Ρ ΡΡΠΎΠ³ΠΎ:
- ΡΠ²Π΅Π»ΠΈΡΡΡΠ΅ ΠΏΠΎΠ»ΡΡΠ΅Π½Π½ΠΎΠ΅ ΡΠΈΡΠ»ΠΎ Π½Π° 7%β Π΅ΡΠ»ΠΈ ΠΏΠ»Π°Π½ΠΈΡΡΠ΅ΡΠ΅ ΠΏΡΡΠΌΡΡ ΡΠΊΠ»Π°Π΄ΠΊΡ;
- Π½Π° 10% β Π΅ΡΠ»ΠΈ Π΄ΠΈΠ°Π³ΠΎΠ½Π°Π»ΡΠ½ΡΡ.
Π Π½Π°ΡΠ΅ΠΌ ΡΠ»ΡΡΠ°Π΅ Π΄Π»Ρ ΠΏΠΎΠΊΡΡΡΠΈΡ ΠΊΠΎΠΌΠ½Π°ΡΡ ΠΏΡΡΠΌΡΠΌ ΡΠΏΠΎΡΠΎΠ±ΠΎΠΌ Π΄ΠΎΡΡΠ°ΡΠΎΡΠ½ΠΎ 11 ΡΠΏΠ°ΠΊΠΎΠ²ΠΎΠΊ Π²ΡΠ±ΡΠ°Π½Π½ΠΎΠ³ΠΎ Π»Π°ΠΌΠΈΠ½Π°ΡΠ°, Π° Π΄Π»Ρ Π΄ΠΈΠ°Π³ΠΎΠ½Π°Π»ΡΠ½ΠΎΠ³ΠΎ β Π½ΡΠΆΠ½ΠΎ 12.
ΠΡΠΎΡΠΎΠΉ Π²Π°ΡΠΈΠ°Π½Ρ
ΠΡΠ»ΠΈ ΠΌΠ½ΠΎΠ³ΠΎ Π²ΡΡΡΡΠΏΠΎΠ², ΠΊΠΎΠ»ΠΎΠ½Π½ ΠΈ Π½ΠΈΡ, ΡΠ΄ΠΎΠ±Π½Π΅Π΅ Π²ΠΎΡΠΏΠΎΠ»ΡΠ·ΠΎΠ²Π°ΡΡΡΡ Π΄ΡΡΠ³ΠΈΠΌ ΡΠΏΠΎΡΠΎΠ±ΠΎΠΌ. ΠΠΎΠ½Π΅ΡΠ½ΠΎ, ΠΏΠΎΠ΄ΠΎΠΉΠ΄Π΅Ρ ΠΈ ΠΏΠ΅ΡΠ²ΡΠΉ, Π½ΠΎ ΡΠΎΠ³Π΄Π° ΠΏΡΠΈΠ΄Π΅ΡΡΡ ΡΠΏΠΎΡΠ½ΠΎ Π²ΡΡΡΠΈΡΡΠ²Π°ΡΡ ΠΏΠ»ΠΎΡΠ°Π΄Ρ ΠΊΠ°ΠΆΠ΄ΠΎΠ³ΠΎ Π²ΡΡΡΡΠΏΠ°. ΠΠΎΠΏΡΠΎΠ±ΡΠ΅ΠΌ ΠΎΠ±ΠΎΠΉΡΠΈΡΡ Π±Π΅Π· ΡΡΠΎΠ³ΠΎ.
ΠΠ»ΠΈΠ½Π° ΠΈ ΡΠΈΡΠΈΠ½Π° ΠΎΠ΄Π½ΠΎΠΉ Π΄ΠΎΡΠ΅ΡΠΊΠΈ Π² ΡΠΏΠ°ΠΊΠΎΠ²ΠΊΠ΅ Π»Π°ΠΌΠΈΠ½Π°ΡΠ° Balterio Xpressions ΡΠ°Π²Π½Ρ 1261Ρ 190,5 ΠΌΠΌ. ΠΠ΅ΡΠ΅Π²Π΅Π΄Π΅ΠΌ ΡΠ°Π·ΠΌΠ΅ΡΡ Π² ΠΌΠ΅ΡΡΡ β 1,26Ρ 0,19 ΠΌ. ΠΡΠ΄ΡΡΠ΅ Π²Π½ΠΈΠΌΠ°ΡΠ΅Π»ΡΠ½Ρ: ΡΠ΅ΠΉΡΠ°Ρ ΠΌΡ ΠΎΡΠΈΠ΅Π½ΡΠΈΡΡΠ΅ΠΌΡΡ Π½Π΅ Π½Π° ΠΏΠ»ΠΎΡΠ°Π΄Ρ, Π° Π½Π° Π΄Π»ΠΈΠ½Ρ ΡΡΠΎΡΠΎΠ½.
- Π΄Π»ΠΈΠ½Π° ΠΊΠΎΠΌΠ½Π°ΡΡ β 6,5 ΠΌ, Π° Π΄ΠΎΡΠΊΠΈ β 1,26 ΠΌ. Π£Π·Π½Π°Π΅ΠΌ, ΡΠΊΠΎΠ»ΡΠΊΠΎ Π½ΡΠΆΠ½ΠΎ ΡΡΡΠΊ Π΄Π»Ρ ΠΏΠΎΠΊΡΡΡΠΈΡ Π΄Π»ΠΈΠ½Ρ: 6,5/1,26=5,15.ΠΠΊΡΡΠ³Π»ΠΈΠΌ Π΄ΠΎ 6.
- ΡΠΈΡΠΈΠ½Π° ΠΊΠΎΠΌΠ½Π°ΡΡ β 3,5 ΠΌ, Π»Π°ΠΌΠ΅Π»ΠΈ β 0,19 ΠΌ. Π‘ΡΠΈΡΠ°Π΅ΠΌ: 3,5/0,19=18,4. ΠΠΊΡΡΠ³Π»ΠΈΠΌ Π΄ΠΎ 19.
- ΡΠΌΠ½ΠΎΠΆΠΈΠΌ Π΄Π»ΠΈΠ½Ρ Π½Π° ΡΠΈΡΠΈΠ½Ρ: 19*6=114. ΠΠΌΠ΅Π½Π½ΠΎ ΡΡΠΎΠ»ΡΠΊΠΎ Π΄ΠΎΡΠ΅ΡΠ΅ΠΊ Π½Π°ΠΌ ΠΏΠΎΡΡΠ΅Π±ΡΠ΅ΡΡΡ.
- ΠΌΡ ΠΏΠΎΠΌΠ½ΠΈΠΌ, ΡΡΠΎ Ρ Π½Π°Ρ Π΅ΡΡΡ ΡΡΠ°ΡΡΠΎΠΊ, ΡΠΎΠ΅Π΄ΠΈΠ½ΡΡΡΠΈΠΉ ΠΊΠΎΠΌΠ½Π°ΡΡ Ρ ΠΊΠΎΡΠΈΠ΄ΠΎΡΠΎΠΌ. ΠΠ΄Π½Π°ΠΊΠΎ ΠΌΡ Π½Π΅ ΡΠ»ΡΡΠ°ΠΉΠ½ΠΎ ΠΎΠΊΡΡΠ³Π»ΡΠ»ΠΈ ΠΊΠΎΠ»ΠΈΡΠ΅ΡΡΠ²ΠΎ Π΄ΠΎΡΠ΅ΡΠ΅ΠΊ, Π½Π΅ΠΎΠ±Ρ
ΠΎΠ΄ΠΈΠΌΡΡ
Π΄Π»Ρ ΠΏΠΎΠΊΡΡΡΠΈΡ Π΄Π»ΠΈΠ½Ρ ΠΈ ΡΠΈΡΠΈΠ½Ρ, Π΄ΠΎ Π±ΠΎΠ»ΡΡΠ΅Π³ΠΎ Π·Π½Π°ΡΠ΅Π½ΠΈΡ. Π’Π΅ΠΏΠ΅ΡΡ ΠΏΠ»ΠΎΡΠ°Π΄Ρ Β«ΠΎΡΡΠΎΡΡΠΊΠ°Β»ΠΌΠΎΠΆΠ½ΠΎ Π½Π΅ Π²ΡΡΡΠΈΡΡΠ²Π°ΡΡ: ΠΌΠ°ΡΠ΅ΡΠΈΠ°Π»Π° Π½Π° Π½Π΅Π±ΠΎΠ»ΡΡΠΎΠΉ ΡΡΠ°ΡΡΠΎΠΊ Π½Π°ΠΌ ΡΠΎΡΠ½ΠΎ Ρ
Π²Π°ΡΠΈΡ.

- Π² ΡΠΏΠ°ΠΊΠΎΠ²ΠΊΠ΅ β 9 ΠΏΠ°Π½Π΅Π»Π΅ΠΉ, Π° Π²ΡΠ΅Π³ΠΎ Π½ΡΠΆΠ½ΠΎ 114.114/9=12,6. ΠΠΊΡΡΠ³Π»ΡΠ΅ΠΌ Π΄ΠΎ Π±Π»ΠΈΠΆΠ°ΠΉΡΠ΅Π³ΠΎ ΡΠ΅Π»ΠΎΠ³ΠΎ ΡΠΈΡΠ»Π°. ΠΠΎΠ»ΡΡΠ°Π΅ΡΡΡ, Π΄Π»Ρ ΠΏΠΎΠΊΡΡΡΠΈΡ ΠΊΠΎΠΌΠ½Π°ΡΡ Π½ΡΠΆΠ½ΠΎ 13 ΡΠΏΠ°ΠΊΠΎΠ²ΠΎΠΊ Π»Π°ΠΌΠΈΠ½Π°ΡΠ°.
ΠΠΎΡΠ΅ΠΌΡ ΠΏΠ΅ΡΠ²ΠΎΠ΅ ΡΠΈΡΠ»ΠΎ ΠΏΠΎΠ»ΡΡΠΈΠ»ΠΎΡΡ ΠΌΠ΅Π½ΡΡΠ΅, ΡΠ΅ΠΌ Π²ΡΠΎΡΠΎΠ΅? ΠΠΎΡΠΎΠΌΡ ΡΡΠΎ ΠΏΠ΅ΡΠ²ΡΠΉ ΠΌΠ΅ΡΠΎΠ΄ Π½Π΅ ΡΡΠΈΡΡΠ²Π°Π΅Ρ ΠΌΠ°ΡΠ΅ΡΠΈΠ°Π», ΠΈΠ΄ΡΡΠΈΠΉ Π² ΠΎΡΡ ΠΎΠ΄Ρ, ΠΈ Π²ΡΡΡΡΠΏΡ ΠΊΠΎΠΌΠ½Π°ΡΡ. ΠΠ»Ρ ΠΏΠΎΠ»ΡΡΠ΅Π½ΠΈΡ ΡΠΎΡΠ½ΠΎΠ³ΠΎ ΡΠ΅Π·ΡΠ»ΡΡΠ°ΡΠ° ΠΏΡΠ°Π²ΠΈΠ»ΡΠ½Π΅Π΅ Π²ΠΎΡΠΏΠΎΠ»ΡΠ·ΠΎΠ²Π°ΡΡΡΡ Π²ΡΠΎΡΡΠΌ ΡΠΏΠΎΡΠΎΠ±ΠΎΠΌ: ΡΠΎΠ³Π΄Π° Π»Π°ΠΌΠΈΠ½Π°ΡΠ° Π³Π°ΡΠ°Π½ΡΠΈΡΠΎΠ²Π°Π½Π½ΠΎ Ρ Π²Π°ΡΠΈΡ. ΠΡΠ»ΠΈ Π΅ΡΡΡ ΡΠ²ΠΎΠ±ΠΎΠ΄Π½ΠΎΠ΅ Π²ΡΠ΅ΠΌΡ, ΠΏΠΎΠΏΡΠΎΠ±ΡΠΉΡΠ΅ ΠΎΠ±Π° ΡΠΏΠΎΡΠΎΠ±Π° ΠΈ ΡΡΠ°Π²Π½ΠΈΡΠ΅ ΡΠ΅Π·ΡΠ»ΡΡΠ°ΡΡ. Π’ΠΎΠ³Π΄Π° ΠΏΠΎΠ»ΡΡΠΈΡΡΡ ΠΏΠΎΠ΄ΠΎΠ±ΡΠ°ΡΡ ΡΠΎΡΠ½ΠΎΠ΅ ΠΊΠΎΠ»ΠΈΡΠ΅ΡΡΠ²ΠΎ ΡΠΏΠ°ΠΊΠΎΠ²ΠΎΠΊ.
ΠΡΠ΅ Π½Π΅ΠΌΠ½ΠΎΠ³ΠΎ ΠΎ ΡΠΎΠΌ, ΠΊΠ°ΠΊ ΡΠ°ΡΡΡΠΈΡΡΠ²Π°ΡΡ Π΄ΠΎΠ±Π°Π²Π»Π΅Π½Π½ΡΠΉ ΡΠ°ΡΡ ΠΎΠ΄ Π΄Π»Ρ ΡΠ°Π·Π½ΡΡ Π²ΠΈΠ΄ΠΎΠ² ΡΠΊΠ»Π°Π΄ΠΊΠΈ:
ΠΠ°ΠΊ ΡΠ°ΡΡΡΠΈΡΠ°ΡΡ Π»Π°ΠΌΠΈΠ½Π°Ρ Π½Π° ΠΊΠΎΠΌΠ½Π°ΡΡ
ΠΠΎ ΡΡΠ°ΡΠΈΡΡΠΈΠΊΠ΅ Π»Π°ΠΌΠΈΠ½Π°Ρ ΡΠ²Π»ΡΠ΅ΡΡΡ ΡΠ°ΠΌΡΠΌ ΠΏΠΎΠΏΡΠ»ΡΡΠ½ΡΠΌ Π½Π°ΠΏΠΎΠ»ΡΠ½ΡΠΌ ΠΏΠΎΠΊΡΡΡΠΈΠ΅ΠΌ ΠΏΠΎΡΠ»Π΅ ΠΏΠ»ΠΈΡΠΊΠΈ ΠΈ Π»ΠΈΠ½ΠΎΠ»Π΅ΡΠΌΠ°. ΠΠ°Π½Π½ΡΠΉ ΡΡΠΏΠ΅Ρ Π²ΠΏΠΎΠ»Π½Π΅ Π·Π°ΠΊΠΎΠ½ΠΎΠΌΠ΅ΡΠ΅Π½ β ΠΌΠ°ΡΠ΅ΡΠΈΠ°Π» ΠΏΡΠΎΡΡ Π² ΡΠΊΠ»Π°Π΄ΠΊΠ΅, Π΄ΠΎΡΡΠ°ΡΠΎΡΠ½ΠΎ Π΄ΠΎΠ»Π³ΠΎΠ²Π΅ΡΠ΅Π½ ΠΈ Π½Π΅ ΡΡΠ΅Π±ΡΠ΅Ρ ΡΠΊΡΡΠΏΡΠ»Π΅Π·Π½ΠΎΠ³ΠΎ ΡΡ ΠΎΠ΄Π°.
Π‘Π°ΠΌΠΎ ΡΠΎΠ±ΠΎΠΉ, Π½Π°ΠΏΡΠ°ΡΠΈΠ²Π°Π΅ΡΡΡ Π²ΠΎΠΏΡΠΎΡ β ΠΊΠ°ΠΊ ΡΠ°ΡΡΡΠΈΡΠ°ΡΡ Π»Π°ΠΌΠΈΠ½Π°ΡΠ° Π½Π° ΠΊΠΎΠΌΠ½Π°ΡΡ, ΡΠΊΠΎΠ»ΡΠΊΠΎ ΠΌΠ°ΡΠ΅ΡΠΈΠ°Π»Π° Π½ΡΠΆΠ½ΠΎ Π΄Π»Ρ ΡΠΎΠ³ΠΎ ΠΈΠ»ΠΈ ΠΈΠ½ΠΎΠ³ΠΎ ΠΏΠΎΠΌΠ΅ΡΠ΅Π½ΠΈΡ ΠΈ Ρ.Π΄. ΠΡΠ΅Π΄Π»Π°Π³Π°Π΅ΠΌ ΡΡΠΈ Π½Π°ΠΈΠ±ΠΎΠ»Π΅Π΅ ΡΡΡΠ΅ΠΊΡΠΈΠ²Π½ΡΡ ΡΠΏΠΎΡΠΎΠ±Π° ΡΠ°ΡΡΠ΅Ρ Π΄Π»Ρ Π»ΡΠ±ΡΡ ΡΠΈΠΏΠΎΠ² ΠΏΠΎΠΌΠ΅ΡΠ΅Π½ΠΈΠΉ.
Π§ΡΠΎ ΠΏΠΎΡΡΠ΅Π±ΡΠ΅ΡΡΡ Π·Π½Π°ΡΡ Π΄Π»Ρ ΠΏΡΠΎΠ²Π΅Π΄Π΅Π½ΠΈΡ ΡΠ°ΡΡΠ΅ΡΠΎΠ²
Π‘ΠΏΠΎΡΠΎΠ± ΡΠΊΠ»Π°Π΄ΠΊΠΈ Π²Π»ΠΈΡΠ΅Ρ Π½Π° ΠΎΠ±ΡΠ΅Π΅ ΠΊΠΎΠ»ΠΈΡΠ΅ΡΡΠ²ΠΎ Π»Π°ΠΌΠΈΠ½Π°ΡΠ° ΠΈ Π΅Π³ΠΎ ΠΏΠ΅ΡΠ΅ΡΠ°ΡΡ ΠΎΠ΄ Π² ΠΏΡΠΎΡΠ΅ΡΡΠ΅ Π½Π°ΡΡΠΈΠ»Π°
Π Π°ΡΡΠ΅Ρ Π»Π°ΠΌΠΈΠ½Π°ΡΠ° Π½Π° ΠΊΠΎΠΌΠ½Π°ΡΡ ΠΈΠ»ΠΈ Π»ΡΠ±ΠΎΠ΅ ΠΏΠΎΠΌΠ΅ΡΠ΅Π½ΠΈΠ΅ ΠΌΠΎΠΆΠ½ΠΎ Π²ΡΠΏΠΎΠ»Π½ΠΈΡΡ, ΠΈΡΠΏΠΎΠ»ΡΠ·ΡΡ Π½Π΅ΡΠΊΠΎΠ»ΡΠΊΠΎ ΡΠΏΠΎΡΠΎΠ±ΠΎΠ². ΠΠ΅ΡΠ²ΡΠΉ β ΡΡΠΎ ΡΠ°ΡΡΠ΅Ρ Ρ ΠΈΡΠΏΠΎΠ»ΡΠ·ΠΎΠ²Π°Π½ΠΈΠ΅ ΠΌΠ°ΡΠ΅ΠΌΠ°ΡΠΈΡΠ΅ΡΠΊΠΈΡ ΡΠΎΡΠΌΡΠ». ΠΡΠΎΡΠΎΠΉ β Ρ ΠΏΡΠΈΠΌΠ΅Π½Π΅Π½ΠΈΠ΅ Π°Π²ΡΠΎΠΌΠ°ΡΠΈΠ·ΠΈΡΠΎΠ²Π°Π½Π½ΡΡ ΡΡΠ΅Π΄ΡΡΠ², Π½Π°ΠΏΡΠΈΠΌΠ΅Ρ, ΡΠΏΠ΅ΡΠΈΠ°Π»ΡΠ½ΡΡ ΠΊΠ°Π»ΡΠΊΡΠ»ΡΡΠΎΡΠΎΠ² ΠΈ ΠΏΡΠΎΠ³ΡΠ°ΠΌΠΌ.
ΠΠ±Π° ΡΠΏΠΎΡΠΎΠ±Π° ΠΏΠΎΠ·Π²ΠΎΠ»ΡΡΡ ΠΏΠΎΠ»ΡΡΠΈΡΡ Π΄ΠΎΠ²ΠΎΠ»ΡΠ½ΠΎ ΡΠΎΡΠ½ΠΎΠ΅, Π½ΠΎ ΠΏΡΠΈΠ±Π»ΠΈΠ·ΠΈΡΠ΅Π»ΡΠ½ΠΎΠ΅ Π·Π½Π°ΡΠ΅Π½ΠΈΠ΅, Π½Π° ΠΊΠΎΡΠΎΡΠΎΠ΅ ΡΡΠΎΠΈΡ ΠΎΡΠΈΠ΅Π½ΡΠΈΡΠΎΠ²Π°ΡΡ ΠΏΡΠΈ Π·Π°ΠΊΡΠΏΠΊΠ΅ Π»Π°ΠΌΠΈΠ½Π°ΡΠ°. ΠΠ°ΠΆΠ½ΠΎ ΠΏΠΎΠ½ΠΈΠΌΠ°ΡΡ, ΡΡΠΎ ΡΠ΅Π·ΡΠ»ΡΡΠ°Ρ Π»ΡΠ±ΠΎΠ³ΠΎ ΡΠ°ΡΡΠ΅ΡΠ° Π½Π΅ ΡΡΠΈΡΡΠ²Π°Π΅Ρ ΠΊΠΎΠ»ΠΈΡΠ΅ΡΡΠ²ΠΎ Π»Π°ΠΌΠΈΠ½Π°ΡΠ°, Π·Π°ΡΡΠ°ΡΠΈΠ²Π°Π΅ΠΌΠΎΠ³ΠΎ Π½Π° ΠΏΠΎΠ΄ΡΠ΅Π·ΠΊΡ, Π±ΡΠ°ΠΊ ΠΈΠ»ΠΈ ΡΠ»ΡΡΠ°ΠΉΠ½ΡΡ ΠΏΠΎΡΡΡ Π² Ρ ΠΎΠ΄Π΅ ΡΠ°Π±ΠΎΡ.
ΠΠ΅ΡΠ΅Π΄ ΠΏΡΠΎΠ²Π΅Π΄Π΅Π½ΠΈΠ΅ΠΌ ΡΠ°ΡΡΠ΅ΡΠ½ΡΡ ΡΠ°Π±ΠΎΡ ΡΠ΅ΠΊΠΎΠΌΠ΅Π½Π΄ΡΠ΅ΠΌ ΡΠ΄Π΅Π»Π°ΡΡ ΡΠ»Π΅Π΄ΡΡΡΠ΅Π΅:
- ΠΠ°ΠΊ ΠΌΠΎΠΆΠ½ΠΎ ΡΠΎΡΠ½Π΅Π΅ ΠΈΠ·ΠΌΠ΅ΡΡΡΠ΅ Π΄Π»ΠΈΠ½Ρ ΠΈ ΡΠΈΡΠΈΠ½Ρ ΠΏΠΎΠΌΠ΅ΡΠ΅Π½ΠΈΡ, Π² ΠΊΠΎΡΠΎΡΠΎΠΌ ΠΏΠ»Π°Π½ΠΈΡΡΠ΅ΡΡΡ Π½Π°ΡΡΠΈΠ» Π»Π°ΠΌΠΈΠ½ΠΈΡΠΎΠ²Π°Π½Π½ΠΎΠ³ΠΎ ΠΏΠΎΠΊΡΡΡΠΈΡ.
ΠΠ»Ρ ΡΡΠΎΠ³ΠΎ ΡΠ΄ΠΎΠ±Π½Π΅ΠΉ Π²ΡΠ΅ ΠΈΡΠΏΠΎΠ»ΡΠ·ΠΎΠ²Π°ΡΡ 5-7 ΠΌ ΡΡΠ»Π΅ΡΠΊΡ. ΠΡΠ»ΠΈ ΠΏΠΎΠΌΠ΅ΡΠ΅Π½ΠΈΡ ΠΈΠΌΠ΅Π΅Ρ Π½Π΅ΡΡΠ°Π½Π΄Π°ΡΡΠ½ΡΡ ΡΠΎΡΠΌΡ, ΡΠΎ ΡΠ΄ΠΎΠ±Π½Π΅ΠΉ Π²ΡΠ΅Π³ΠΎ ΡΠ°Π·Π±ΠΈΡΡ ΠΊΠΎΠΌΠ½Π°ΡΡ Π½Π° ΡΡΠ°ΡΡΠΊΠΈ (ΠΏΡΡΠΌΠΎΡΠ³ΠΎΠ»ΡΠ½ΠΈΠΊ, ΠΊΠ²Π°Π΄ΡΠ°ΡΠ° ΠΈ ΡΡΠ΅ΡΠ³ΠΎΠ»ΡΠ½ΠΈΠΊ), ΠΈΠ·ΠΌΠ΅ΡΠΈΡΡ ΠΊΠ°ΠΆΠ΄ΡΠΉ ΠΎΡΠ΄Π΅Π»ΡΠ½ΡΠΉ ΡΡΠ°ΡΡΠΎΠΊ ΠΈ Π²ΡΡΡΠΈΡΠ°ΡΡ ΠΎΠ±ΡΡΡ ΠΏΠ»ΠΎΡΠ°Π΄Ρ Π΄Π»Ρ ΠΊΠ°ΠΆΠ΄ΠΎΠ³ΠΎ ΠΈΠ· Π½ΠΈΡ
. - Π‘ΠΎΡΡΠ°Π²ΡΡΠ΅ ΡΡ Π΅ΠΌΡ ΠΈΠ»ΠΈ ΠΏΡΠΎΠ΅ΠΊΡ Π² ΡΠΌΠ΅Π½ΡΡΠ΅Π½Π½ΠΎΠΌ ΠΌΠ°ΡΡΡΠ°Π±Π΅. ΠΠ° ΡΡ Π΅ΠΌΠ΅ ΠΎΠ±ΠΎΠ·Π½Π°ΡΡΡΠ΅ Π²Ρ ΠΎΠ΄ Π² ΠΊΠΎΠΌΠ½Π°ΡΡ, ΠΎΠΊΠΎΠ½Π½ΡΠ΅ ΠΏΡΠΎΠ΅ΠΌΡ, Π½ΠΈΡΠΈ, ΡΡΡΠ±Ρ ΠΈ ΡΠ°Π΄ΠΈΠ°ΡΠΎΡΡ ΡΠ΅Π½ΡΡΠ°Π»ΡΠ½ΠΎΠ³ΠΎ ΠΎΡΠΎΠΏΠ»Π΅Π½ΠΈΡ. Π’ΠΎ Π΅ΡΡΡ Π²ΡΠ΅, ΡΡΠΎ ΠΌΠΎΠΆΠ΅Ρ Π²Π½Π΅ΡΡΠΈ ΠΊΠ°ΠΊΠΈΠ΅-ΡΠΎ ΠΊΠΎΡΡΠ΅ΠΊΡΠΈΠ²Ρ ΠΏΡΠΈ ΡΠΊΠ»Π°Π΄ΠΊΠ΅ ΠΏΠΎΠΊΡΡΡΠΈΡ.
- ΠΠΎΡΠ΅ΡΠΈΡΠ΅ ΠΌΠ°Π³Π°Π·ΠΈΠ½ ΠΈΠ»ΠΈ ΡΠΎΡΠ³ΠΎΠ²ΡΡ ΡΠΎΡΠΊΡ ΠΈ ΠΎΠ·Π½Π°ΠΊΠΎΠΌΡΡΠ΅ΡΡ Ρ Π°ΡΡΠΎΡΡΠΈΠΌΠ΅Π½ΡΠΎΠΌ. ΠΠ±ΡΠ°ΡΠ°ΠΉΡΠ΅ Π²Π½ΠΈΠΌΠ°Π½ΠΈΠ΅ Π½Π° Π΄Π»ΠΈΠ½Ρ ΠΈ ΡΠΈΡΠΈΠ½Ρ Π»Π°ΠΌΠ΅Π»ΠΈ. ΠΠ° ΡΠΏΠ°ΠΊΠΎΠ²ΠΊΠ°Ρ Π½Π΅ΠΊΠΎΡΠΎΡΡΡ ΠΏΡΠΎΠΈΠ·Π²ΠΎΠ΄ΠΈΡΠ΅Π»Π΅ΠΉ ΡΠΊΠ°Π·ΡΠ²Π°Π΅ΡΡΡ ΠΏΠΎΠΊΡΡΠ²Π°Π΅ΠΌΠ°Ρ ΠΏΠ»ΠΎΡΠ°Π΄Ρ ΠΎΠ΄Π½ΠΎΠΉ ΡΠΏΠ°ΠΊΠΎΠ²ΠΊΠΈ. ΠΠ΅ΡΠ΅ΠΏΠΈΡΠΈΡΠ΅ Π² Π±Π»ΠΎΠΊΠ½ΠΎΡ ΠΈΠ»ΠΈ ΡΡΠΎΡΠΎΠ³ΡΠ°ΡΠΈΡΡΠΉΡΠ΅ ΡΠ°Π·ΠΌΠ΅ΡΡ Π½Π°ΠΈΠ±ΠΎΠ»Π΅Π΅ ΠΏΠΎΠ΄Ρ ΠΎΠ΄ΡΡΠΈΠΉ ΠΌΠ°ΡΠ΅ΡΠΈΠ°Π»ΠΎΠ².
ΠΡΠΎ ΠΌΠΈΠ½ΠΈΠΌΠ°Π»ΡΠ½ΠΎ Π½Π΅ΠΎΠ±Ρ ΠΎΠ΄ΠΈΠΌΡΠ΅ Π΄Π΅ΠΉΡΡΠ²ΠΈΡ, ΠΊΠΎΡΠΎΡΡΠ΅ ΠΌΡ ΡΠ΅ΠΊΠΎΠΌΠ΅Π½Π΄ΡΠ΅ΠΌ ΡΠ΄Π΅Π»Π°ΡΡ ΠΏΡΠ΅ΠΆΠ΄Π΅, ΡΠ΅ΠΌ ΠΏΡΠΈΡΡΡΠΏΠ°ΡΡ ΠΊ ΡΠ°ΡΡΠ΅ΡΠ°ΠΌ Π»Π°ΠΌΠΈΠ½Π°ΡΠ°. ΠΠΎΠ½Π΅ΡΠ½ΠΎ, ΠΌΠΎΠΆΠ½ΠΎ ΡΠ΅ΡΡΡ ΠΈ ΠΏΡΠΈΠΊΠΈΠ½ΡΡΡ ΠΏΠΎ Π·Π½Π°ΡΠ΅Π½ΠΈΡΠΌ, Π½Π°ΠΉΠ΄Π΅Π½Π½ΡΠΌ Π² ΠΈΠ½ΡΠ΅ΡΠ½Π΅ΡΠ΅, Π½ΠΎ Π½Π΅ ΡΠ°ΠΊΡ, ΡΡΠΎ ΠΏΠΎΠ΄ΠΎΠ±Π½ΡΠΉ Π»Π°ΠΌΠΈΠ½Π°Ρ ΠΎΠΊΠ°ΠΆΠ΅ΡΡΡ Π² Π±Π»ΠΈΠΆΠ°ΠΉΡΠ΅ΠΌ ΠΌΠ°Π³Π°Π·ΠΈΠ½Π΅.
Π ΠΏΡΠΎΡΠ΅ΡΡ ΠΏΠΎΠ΄ΡΡΠ΅ΡΠ° ΡΡΠΈΡΡΠ²Π°ΠΉΡΠ΅, ΡΡΠΎ ΠΌΠΈΠ½ΠΈΠΌΠ°Π»ΡΠ½ΡΠΉ Π·Π°ΠΏΠ°Ρ ΠΏΠΎ ΠΌΠ°ΡΠ΅ΡΠΈΠ°Π»Ρ ΠΏΡΠΈ ΠΏΡΡΠΌΠΎΠΉ ΡΠΊΠ»Π°Π΄ΠΊΠ΅ Π΄ΠΎΠ»ΠΆΠ΅Π½ Π±ΡΡΡ ΡΠ°Π²Π΅Π½ Π½Π΅ ΠΌΠ΅Π½Π΅Π΅ 7-10%. ΠΡΠΈ Π΄ΠΈΠ°Π³ΠΎΠ½Π°Π»ΡΠ½ΠΎΠΌ Π½Π°ΡΡΠΈΠ»Π΅ ΡΠ΅ΠΊΠΎΠΌΠ΅Π½Π΄ΡΠ΅ΡΡΡ Π±ΡΠ°ΡΡ Π·Π°ΠΏΠ°Ρ Π² 15-20%, ΠΊΠΎΠΌΠ±ΠΈΠ½ΠΈΡΠΎΠ²Π°Π½Π½ΡΠΉ ΠΈ ΡΠΈΠ³ΡΡΠ½ΡΠΉ Π½Π°ΡΡΠΈΠ» β 25-30%.
Π‘ΠΏΠΎΡΠΎΠ± #1 β ΡΠ°ΡΡΠ΅Ρ ΠΏΠΎ ΡΠΎΡΠΌΡΠ»Π°ΠΌ
ΠΠ°Π½Π½ΡΠΉ ΡΠΏΠΎΡΠΎΠ± ΡΠ²Π»ΡΠ΅ΡΡΡ Π½Π°ΠΈΠ±ΠΎΠ»Π΅Π΅ ΠΏΡΠΎΡΡΡΠΌ, ΡΠ°ΠΊ ΠΊΠ°ΠΊ Π΄Π»Ρ ΠΏΡΠΎΠ²Π΅Π΄Π΅Π½ΠΈΡ ΡΠ°ΡΡΠ΅ΡΠ° ΠΊΠΎΠ»ΠΈΡΠ΅ΡΡΠ²Π° Π»Π°ΠΌΠΈΠ½Π°ΡΠ° ΠΈΡΠΏΠΎΠ»ΡΠ·ΡΡΡΡΡ ΠΏΡΠΎΡΡΡΠ΅ ΡΠΎΡΠΌΡΠ»Ρ, ΠΈΠ·Π²Π΅ΡΡΠ½ΡΠ΅ Π»ΡΠ±ΠΎΠΌΡ ΡΠ΅Π»ΠΎΠ²Π΅ΠΊΡ, ΠΎΠΊΠΎΠ½ΡΠΈΠ²ΡΠ΅ΠΌΡ ΡΠΊΠΎΠ»Ρ. ΠΡΠΎΠ³ΠΎΠ²ΡΠΉ ΡΠ΅Π·ΡΠ»ΡΡΠ°Ρ ΠΏΡΠΈΠ±Π»ΠΈΠ·ΠΈΡΠ΅Π»Π΅Π½, ΡΠ°ΠΊ ΠΊΠ°ΠΊ Π² ΡΠ°ΡΡΠ΅ΡΠ°Ρ ΠΌΡ Π±ΡΠ΄Π΅ΠΌ ΠΎΠΏΠ΅ΡΠΈΡΠΎΠ²Π°ΡΡ ΠΎΠΊΡΡΠ³Π»ΡΡ ΠΈΡΡ ΠΎΠ΄Π½ΡΠ΅ Π²Π΅Π»ΠΈΡΠΈΠ½Ρ Π² ΠΏΡΠΎΡΠ΅ΡΡΠ΅ ΠΊΠ°Π»ΡΠΊΡΠ»ΡΡΠΈΠΈ.
ΠΡΠΈ Π΄ΠΈΠ°Π³ΠΎΠ½Π°Π»ΡΠ½ΠΎΠΌ Π½Π°ΡΡΠΈΠ»Π΅ ΠΈΠΌΠ΅Π΅Ρ ΡΠΌΡΡΠ» ΡΠ°Π·Π±ΠΈΠ²Π°ΡΡ ΠΊΠΎΠΌΠ½Π°ΡΡ Π½Π° Π½Π΅ΡΠΊΠΎΠ»ΡΠΊΠΎ ΡΠ΅ΠΊΡΠΈΠΉ ΠΈ ΡΡΠΈΡΠ°ΡΡ ΠΎΡΠ΄Π΅Π»ΡΠ½ΠΎ
ΠΡΠΏΠΎΠ»Π½Π΅Π½ΠΈΠ΅ ΡΠ°ΡΡΠ΅ΡΠΎΠ² Π±ΡΠ΄Π΅Ρ ΠΏΡΠΎΠΈΡΡ ΠΎΠ΄ΠΈΡΡ Π² ΡΠ»Π΅Π΄ΡΡΡΠ΅ΠΌ ΠΏΠΎΡΡΠ΄ΠΊΠ΅:
- S1 = A1 * B1, Π³Π΄Π΅ S1, A1, B1 β ΠΏΠ»ΠΎΡΠ°Π΄Ρ, Π΄Π»ΠΈΠ½Π° ΠΈ ΡΠΈΡΠΈΠ½Π° ΠΊΠΎΠΌΠ½Π°ΡΡ.
- S2 = A2 * B2, Π³Π΄Π΅ S2, A2, B2 β ΠΏΠ»ΠΎΡΠ°Π΄Ρ, Π΄Π»ΠΈΠ½Π° ΠΈ ΡΠΈΡΠΈΠ½Π° Π»Π°ΠΌΠ΅Π»ΠΈ.
- K = S1 / S2, Π³Π΄Π΅ S β ΠΊΠΎΠ»ΠΈΡΠ΅ΡΡΠ²ΠΎ Π»Π°ΠΌΠ΅Π»Π΅ΠΉ.
ΠΡ ΠΌΠΎΠΆΠ΅ΡΠ΅ Π½Π΅ ΠΈΡΠΏΠΎΠ»ΡΠ·ΠΎΠ²Π°ΡΡ ΠΏΡΠ΅Π΄Π»ΠΎΠΆΠ΅Π½Π½ΡΠΉ Π½Π°ΠΌΠΈ ΠΎΠ±ΠΎΠ·Π½Π°ΡΠ΅Π½ΠΈΡ β ΠΎΠ½ΠΈ Π²Π½ΠΎΡΡΡ ΠΈΡΠΊΠ»ΡΡΠΈΡΠ΅Π»ΡΠ½ΠΎ ΠΌΠ°ΡΠ΅ΠΌΠ°ΡΠΈΡΠ΅ΡΠΊΠΈΠΉ ΠΏΠΎΡΡΠ΄ΠΎΠΊ.
Π ΠΊΠ°ΡΠ΅ΡΡΠ²Π΅ ΠΏΡΠΈΠΌΠ΅ΡΠ° ΠΏΡΠΎΠ²Π΅Π΄Π΅ΠΌ ΡΠ°ΡΡΠ΅ΡΡ Π΄Π»Ρ ΠΏΠΎΠΌΠ΅ΡΠ΅Π½ΠΈΡ Π΄Π»ΠΈΠ½ΠΎΠΉ 7 ΠΌ ΠΈ ΡΠΈΡΠΈΠ½ΠΎΠΉ Π² 4 ΠΌ. ΠΠΎΠΌΠ½Π°ΡΠ° Π±ΡΠ΄Π΅Ρ ΠΈΠΌΠ΅ΡΡ Π½Π΅Π±ΠΎΠ»ΡΡΠΎΠΉ Π·Π°ΠΊΡΡΠΎΠΊ Ρ ΡΠ°Π·ΠΌΠ΅ΡΠ°ΠΌΠΈ 1,2 * 0,3 ΠΌ. ΠΠ° Π½ΠΎΠΌΠΈΠ½Π°Π»ΡΠ½ΡΠΉ ΡΠ°Π·ΠΌΠ΅Ρ Π²ΠΎΠ·ΡΠΌΠ΅ΠΌ Π΄Π»ΠΈΠ½Ρ Π² 1292 ΠΌΠΌ ΠΈ ΡΠΈΡΠΈΠ½Ρ Π² 194 ΠΌΠΌ. ΠΡΠΎ ΡΠ΅Π°Π»ΡΠ½ΡΠΉ ΡΠ°Π·ΠΌΠ΅Ρ Π»Π°ΠΌΠΈΠ½Π°ΡΠ° 33 ΠΊΠ»Π°ΡΡΠ° ΠΎΡ ΡΠΈΡΠΌΡ Tarkett.
ΠΡΠΈΠΌΠ΅Ρ:
- 7 * 4 = 28 ΠΌ2.
- 1,2 * 0,3 = 0,36 ΠΌ2.
- 1,292 * 0,194 = 0,251 ΠΌ2.
- 28 + 0,36 / 0,251 = 113 ΡΡ.
Π ΠΈΡΠΎΠ³Π΅ ΠΌΡ ΠΏΠΎΠ»ΡΡΠΈΠ»ΠΈ, ΡΡΠΎ Π½Π° ΠΊΠΎΠΌΠ½Π°ΡΡ ΠΎΠ±ΡΠ΅ΠΉ ΠΏΠ»ΠΎΡΠ°Π΄ΡΡ 28 ΠΌ2 ΠΏΠΎΡΡΠ΅Π±ΡΠ΅ΡΡΡ 113 ΡΡ. Π»Π°ΠΌΠΈΠ½Π°ΡΠ°. ΠΠ°Π»Π΅Π΅ ΠΏΠΎΡΡΠ΅Π±ΡΠ΅ΡΡΡ ΠΏΠ΅ΡΠ΅Π²Π΅ΡΡΠΈ ΠΊΠΎΠ»ΠΈΡΠ΅ΡΡΠ²ΠΎ Π»Π°ΠΌΠ΅Π»Π΅ΠΉ. ΠΠ»Ρ Π²ΡΠ±ΡΠ°Π½Π½ΠΎΠ³ΠΎ Π½Π°ΠΌΠΈ Π»Π°ΠΌΠΈΠ½Π°ΡΠ° β ΡΡΠΎ 8 ΡΡ. Π² ΡΠΏΠ°ΠΊΠΎΠ²ΠΊΠ΅. Π‘Π»Π΅Π΄ΠΎΠ²Π°ΡΠ΅Π»ΡΠ½ΠΎ, ΠΏΠΎΡΡΠ΅Π±ΡΠ΅ΡΡΡ β 113 / 8 β 14,1 ΡΠΏΠ°ΠΊΠΎΠ²ΠΊΠΈ.
ΠΡΠ»ΠΈ Π² ΠΊΠΎΠΌΠ½Π°ΡΠ΅ ΠΏΡΠΈΡΡΡΡΡΠ²ΡΡΡ Π±ΠΎΠ»Π΅Π΅ ΠΎΠ΄Π½ΠΎΠΉ Π½ΠΈΡΠΈ ΠΈΠ»ΠΈ ΡΡΠ°ΡΡΠΊΠ°, Π²ΡΡ ΠΎΠ΄ΡΡΠ΅Π³ΠΎ ΠΊ Π²Ρ ΠΎΠ΄Π½ΠΎΠΉ Π΄Π²Π΅ΡΠΈ, Π²ΡΡ ΠΎΠ΄Ρ ΠΈΠ»ΠΈ ΠΎΠΊΠ½Ρ, ΡΠΎ ΠΈΡ ΠΏΠ»ΠΎΡΠ°Π΄Ρ ΡΠ°ΡΡΡΠΈΡΡΠ²Π°Π΅ΡΡΡ ΠΎΡΠ΄Π΅Π»ΡΠ½ΠΎ. ΠΠ°Π»Π΅Π΅ ΠΏΠΎΠ»ΡΡΠ΅Π½Π½Π°Ρ Π²Π΅Π»ΠΈΡΠΈΠ½Π° ΡΡΠΌΠΌΠΈΡΡΠ΅ΡΡΡ Ρ ΠΎΠ±ΡΠ΅ΠΉ ΠΏΠ»ΠΎΡΠ°Π΄ΡΡ (ΠΊΠ°ΠΊ ΠΏΠΎΠΊΠ°Π·Π°Π½ΠΎ Π² ΠΏΡΠΈΠΌΠ΅ΡΠ΅) ΠΈ ΡΠ°ΡΡΡΠΈΡΡΠ²Π°Π΅ΡΡΡ ΠΊΠΎΠ»ΠΈΡΠ΅ΡΡΠ²ΠΎ ΠΌΠ°ΡΠ΅ΡΠΈΠ°Π»Π°.
ΠΠΈΠ½ΡΡ ΡΠ°ΠΊΠΎΠ³ΠΎ ΡΠΏΠΎΡΠΎΠ±Π° Π² ΡΠΎΠΌ, ΡΡΠΎ ΠΎΠ½ Ρ ΠΎΡΠΎΡΠΎ ΠΏΠΎΠ΄Ρ ΠΎΠ΄ΠΈΡ ΡΠΎΠ»ΡΠΊΠΎ Π΄Π»Ρ ΠΊΠΎΠΌΠ½Π°Ρ ΠΏΡΠ°Π²ΠΈΠ»ΡΠ½ΠΎΠΉ ΡΠΎΡΠΌΡ β ΠΏΡΡΠΌΠΎΡΠ³ΠΎΠ»ΡΠ½ΠΈΠΊ, ΠΊΠ²Π°Π΄ΡΠ°Ρ ΠΈΠ»ΠΈ ΠΊΠΎΠΌΠ±ΠΈΠ½Π°ΡΠΈΡ ΠΏΡΡΠΌΡΡ ΡΠΈΠ³ΡΡ. Π ΠΎΡΡΠ°Π»ΡΠ½ΡΡ ΡΠ»ΡΡΠ°ΡΡ , ΠΌΡ ΡΠ΅ΠΊΠΎΠΌΠ΅Π½Π΄ΡΠ΅ΠΌ Π²ΠΎΡΠΏΠΎΠ»ΡΠ·ΠΎΠ²Π°ΡΡΡΡ Π²ΡΠΎΡΡΠΌ ΠΌΠ΅ΡΠΎΠ΄ΠΎΠΌ.
Π‘ΠΏΠΎΡΠΎΠ± #2 β ΡΠ°ΡΡΠ΅Ρ Ρ ΡΡΠ΅ΡΠΎΠΌ ΠΊΠΎΠ»ΠΈΡΠ΅ΡΡΠ²Π° Π»Π°ΠΌΠ΅Π»Π΅ΠΉ
ΠΠΈΡΠΈ ΠΈ ΠΊΠΎΠ»ΠΎΠ½Π½Ρ Π·Π°ΡΡΡΠ΄Π½ΡΡΡ ΡΠ°ΡΡΠ΅Ρ, Π½ΠΎ ΠΈΡ Π²ΡΠ΅Π³Π΄Π° ΠΌΠΎΠΆΠ½ΠΎ ΠΈΠ·ΠΌΠ΅ΡΠΈΡΡ Π² ΠΏΠΎΡΠ»Π΅Π΄Π½ΡΡ ΠΎΡΠ΅ΡΠ΅Π΄Ρ
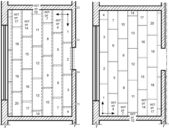
ΠΠ°Π½Π½ΡΠΉ ΠΌΠ΅ΡΠΎΠ΄ ΠΏΠΎΡ ΠΎΠΆ Π½Π° ΡΠΏΠΎΡΠΎΠ±, ΠΎΠΏΠΈΡΠ°Π½Π½ΡΠΉ Π²ΡΡΠ΅, ΡΠΎΠ»ΡΠΊΠΎ Π΄Π»Ρ ΡΠ°ΡΡΠ΅ΡΠ° Π»Π°ΠΌΠΈΠ½Π°ΡΠ° Π±ΡΠ΄Π΅Ρ ΠΈΡΠΏΠΎΠ»ΡΠ·ΠΎΠ²Π°Π½Π° Π½Π΅ ΠΎΠ±ΡΠ°Ρ ΠΏΠ»ΠΎΡΠ°Π΄Ρ ΠΊΠΎΠΌΠ½Π°ΡΡ ΠΈ ΠΎΠ΄Π½ΠΎΠΉ Π»Π°ΠΌΠ΅Π»ΠΈ, Π° ΠΈΡ Π΄Π»ΠΈΠ½Π° ΠΈ ΡΠΈΡΠΈΠ½Π°.
ΠΡΠΎ ΠΏΠΎΠ·Π²ΠΎΠ»ΠΈΡ ΠΏΠΎΠ»ΡΡΠΈΡΡ Π±ΠΎΠ»Π΅Π΅ ΡΠΎΡΠ½ΡΠΉ ΡΠ΅Π·ΡΠ»ΡΡΠ°Ρ, Π½ΠΎ ΠΎΠ½ ΠΌΠΎΠΆΠ΅Ρ ΠΌΠ°Π»ΠΎ ΠΎΡΠ»ΠΈΡΠ°ΡΡΡΡ ΠΎΡ ΠΏΡΠ΅Π΄ΡΠ΄ΡΡΠΈΡ ΡΠ°ΡΡΠ΅ΡΠΎΠ² Π² ΡΠΈΠ»Ρ Π½Π΅Π±ΠΎΠ»ΡΡΠΈΡ ΠΏΠ»ΠΎΡΠ°Π΄Π΅ΠΉ ΡΠΈΠΏΠΎΠ²ΡΡ ΠΏΠΎΠΌΠ΅ΡΠ΅Π½ΠΈΠΉ.
ΠΡΠΎΠΈΠ·Π²Π΅ΡΡΠΈ ΡΠ°ΡΡΠ΅ΡΡ ΠΌΠΎΠΆΠ½ΠΎ Ρ ΠΏΠΎΠΌΠΎΡΡ ΡΠ»Π΅Π΄ΡΡΡΠΈΡ ΡΠΎΡΠΌΡΠ»:
K1 = A1 / A2, Π³Π΄Π΅ K1 β ΠΊΠΎΠ»ΠΈΡΠ΅ΡΡΠ²ΠΎ ΠΏΠ°Π½Π΅Π»Π΅ΠΉ ΠΏΠΎ Π΄Π»ΠΈΠ½Π΅, A1 β Π΄Π»ΠΈΠ½Π° ΠΏΠΎΠΌΠ΅ΡΠ΅Π½ΠΈΡ, A2 β Π΄Π»ΠΈΠ½Π° Π»Π°ΠΌΠΈΠ½ΠΈΡΠΎΠ²Π°Π½Π½ΠΎΠΉ ΠΏΠ°Π½Π΅Π»ΠΈ.
K2 = B1 / B2, Π³Π΄Π΅ K1 β ΠΊΠΎΠ»ΠΈΡΠ΅ΡΡΠ²ΠΎ ΠΏΠ°Π½Π΅Π»Π΅ΠΉ ΠΏΠΎ ΡΠΈΡΠΈΠ½Π΅, B1 β ΡΠΈΡΠΈΠ½Π° ΠΏΠΎΠΌΠ΅ΡΠ΅Π½ΠΈΡ, B2 β ΡΠΈΡΠΈΠ½Π° Π»Π°ΠΌΠΈΠ½ΠΈΡΠΎΠ²Π°Π½Π½ΠΎΠΉ ΠΏΠ°Π½Π΅Π»ΠΈ.
K = K1 * K2, Π³Π΄Π΅ K β ΠΎΠ±ΡΠ΅Π΅ ΠΊΠΎΠ»ΠΈΡΠ΅ΡΡΠ²ΠΎ ΠΏΠ°Π½Π΅Π»Π΅ΠΉ.
Π’ΠΎ Π΅ΡΡΡ Π½Π°ΠΌ Π½ΡΠΆΠ½ΠΎ Π²ΡΡΠΈΡΠ»ΠΈΡΡ, ΡΠΊΠΎΠ»ΡΠΊΠΎ ΠΏΠ°Π½Π΅Π»Π΅ΠΉ ΡΠΊΠ»Π°Π΄ΡΠ²Π°Π΅ΡΡΡ ΠΏΠΎ Π΄Π»ΠΈΠ½Π΅ ΠΈ ΡΠΈΡΠΈΠ½Π΅ ΠΏΠΎΠΌΠ΅ΡΠ΅Π½ΠΈΡ, Π° Π·Π°ΠΌΠ΅ΡΠ΅ΠΌ ΠΏΠΎΠ΄ΡΡΠΈΡΠ°ΡΡ ΠΎΠ±ΡΠ΅Π΅ ΠΊΠΎΠ»ΠΈΡΠ΅ΡΡΠ²ΠΎ ΡΡΠ΅Π±ΡΠ΅ΠΌΡΡ ΠΏΠΎΠ»ΠΎΡΠ΅Π½. ΠΠ»Ρ ΠΏΡΠΈΠΌΠ΅ΡΠ° Π²ΠΎΠ·ΡΠΌΠ΅ΠΌ Π΄Π°Π½Π½ΡΠ΅ ΠΈΡ ΠΏΡΠΎΡΠ»ΠΎΠ³ΠΎ ΡΠ°Π·Π΄Π΅Π»Π°.
ΠΡΠΈΠΌΠ΅Ρ:
- 7 / 1,292 = 5,42.
- 4 / 0,194 = 20,62.
- 5,42 * 20,62 = 111,76.
- (1,2 / 1,292) * (0,3 /0,194) = 1,44.
- 111,76 + 1,44 = 114.
Π ΡΠ΅Π·ΡΠ»ΡΡΠ°ΡΠ΅ ΠΏΠΎΠ»ΡΡΠ°Π΅ΠΌ, ΡΡΠΎ Π½Π°ΠΌ ΠΏΠΎΡΡΠ΅Π±ΡΠ΅ΡΡΡ ΠΏΡΠΈΠΌΠ΅ΡΠ½ΠΎ ΡΠ°ΠΊΠΎΠ΅ ΠΆΠ΅ ΠΊΠΎΠ»ΠΈΡΠ΅ΡΡΠ²ΠΎ ΠΏΠ°Π½Π΅Π»Π΅ΠΉ ΠΈΠ»ΠΈ β 114 /8 = 14,25 ΡΠΏΠ°ΠΊΠΎΠ²ΠΊΠΈ. ΠΡΠ΅ Π·Π½Π°ΡΠ΅Π½ΠΈΡ ΠΌΡ ΠΎΠΊΡΡΠ³Π»ΡΠ»ΠΈ ΠΏΠΎ ΠΏΡΠ°Π²ΠΈΠ»Π°ΠΌ ΠΌΠ°ΡΠ΅ΠΌΠ°ΡΠΈΠΊΠΈ. ΠΠΎΠ½Π΅ΡΠ½ΠΎΠ΅ Π·Π½Π°ΡΠ΅Π½ΠΈΠ΅ ΠΎΠΊΡΡΠ³Π»ΡΠ΅ΡΡΡ Π² Π±ΠΎΠ»ΡΡΡΡ ΡΡΠΎΡΠΎΠ½Ρ.
ΠΠ°Π½Π½ΡΠΉ ΡΠΏΠΎΡΠΎΠ± ΡΠ°ΡΡΠ΅ΡΠ° Ρ ΠΎΡΠΎΡΠΎ ΠΏΠΎΠ΄Ρ ΠΎΠ΄ΠΈΡ Π² ΡΠ»ΡΡΠ°ΡΡ , ΠΊΠΎΠ³Π΄Π° ΡΠΊΠ»Π°Π΄ΠΊΠ° Π»Π°ΠΌΠΈΠ½Π°ΡΠ° Π±ΡΠ΄Π΅Ρ ΠΏΡΠΎΠΈΡΡ ΠΎΠ΄ΠΈΡΡ Π² Π½Π΅ΡΠΊΠΎΠ»ΡΠΊΠΈΡ ΠΏΠΎΠΌΠ΅ΡΠ΅Π½ΠΈΡΡ . ΠΠ° ΡΡΠ΅Ρ Π±ΠΎΠ»ΡΡΠΎΠΉ ΠΏΠ»ΠΎΡΠ°Π΄ΠΈ, ΠΎΠ±ΡΠ΅Π·ΠΊΠΎΠ² ΠΈ Π½Π°ΡΡΠΈΠ»Π° Ρ ΠΏΠ΅ΡΠ΅ΠΊΡΡΡΠΈΠ΅ΠΌ ΡΡΡΠΊΠΎΠ² ΠΌΠΎΠΆΠ½ΠΎ Π΄ΠΎΠ±ΠΈΡΡΡΡ ΡΡΡΠ΅ΡΡΠ²Π΅Π½Π½ΠΎΠΉ ΡΠΊΠΎΠ½ΠΎΠΌΠΈΠΈ.
Π‘ ΠΏΡΠ°ΠΊΡΠΈΡΠ΅ΡΠΊΠΎΠΉ ΡΠΎΡΠΊΠΈ Π·ΡΠ΅Π½ΠΈΡ, ΡΠ°ΠΊΠΎΠΉ ΠΌΠ΅ΡΠΎΠ΄ Π½Π΅ΡΠ΄ΠΎΠ±Π΅Π½, ΡΠ°ΠΊ ΠΊΠ°ΠΊ ΠΏΡΠΈΡ ΠΎΠ΄ΠΈΡΡΡ, ΠΏΠ΅ΡΠ΅Π²ΠΎΠ΄ΠΈΡ Π΄Π»ΠΈΠ½Ρ ΠΈ ΡΠΈΡΠΈΠ½Ρ Π² ΠΌΠ΅ΡΡΠ°ΠΆ, ΠΈ ΠΎΠΏΠ΅ΡΠΈΡΠΎΠ²Π°ΡΡ Π΄ΡΠΎΠ±ΡΠΌΠΈ. Π₯ΠΎΡΡ ΡΡΠΎ ΠΈ ΠΏΡΠΎΡΡΠ°Ρ Π°ΡΠΈΡΠΌΠ΅ΡΠΈΠΊΠ°.
Π‘ΠΏΠΎΡΠΎΠ± #3 β ΠΊΠ°Π»ΡΠΊΡΠ»ΡΡΠΎΡ ΡΠ°ΡΡΠ΅ΡΠ°
ΠΠΎΠ΄ΡΠΎΠ±Π½Π°Ρ ΡΡ Π΅ΠΌΠ° Π΄Π»Ρ Π΄ΠΈΠ°Π³ΠΎΠ½Π°Π»ΡΠ½ΡΠΉ ΡΠΊΠ»Π°Π΄ΠΊΠΈ Ρ ΠΏΡΠΎΡΡΠΈΡΠ°Π½Π½ΡΠΌ ΠΊΠΎΠ»ΠΈΡΠ΅ΡΡΠ²ΠΎ ΠΏΠ°Π½Π΅Π»Π΅ΠΉ Π»Π°ΠΌΠΈΠ½Π°ΡΠ°
ΠΠ°Π½Π½ΡΠΉ ΡΠΏΠΎΡΠΎΠ± ΡΠ²Π»ΡΠ΅ΡΡΡ Π½Π°ΠΈΠ±ΠΎΠ»Π΅Π΅ ΠΏΡΠΎΡΡΡΠΌ β ΡΡΠΎΠ±Ρ ΡΠ°ΡΡΡΠΈΡΠ°ΡΡ ΠΊΠΎΠ»ΠΈΡΠ΅ΡΡΠ²ΠΎ Π»Π°ΠΌΠΈΠ½Π°ΡΠ° ΠΈΡΠΏΠΎΠ»ΡΠ·ΡΠ΅ΡΡΡ ΠΊΠ°Π»ΡΠΊΡΠ»ΡΡΠΎΡ, ΠΊΠΎΡΠΎΡΡΠΉ Π±ΡΠ» ΡΠ΄Π΅Π»Π°Π½ ΡΠΏΠ΅ΡΠΈΠ°Π»ΡΠ½ΠΎ Π΄Π»Ρ Π½Π°ΡΠ΅Π³ΠΎ ΡΠ°ΠΉΡΠ°. Π Π΅Π³ΠΎ ΡΠ°Π±ΠΎΡΠ΅ ΠΈΡΠΏΠΎΠ»ΡΠ·ΡΠ΅ΡΡΡ ΡΡΠ°Π½Π΄Π°ΡΡΠ½Π°Ρ ΡΠΎΡΠΌΡΠ»Π°, ΠΎΠΏΠΈΡΠ°Π½Π½Π°Ρ Π² ΠΏΠ΅ΡΠ²ΠΎΠΌ ΡΠ°Π·Π΄Π΅Π»Π΅.
ΠΠΎΠΏΠΎΠ»Π½ΠΈΡΠ΅Π»ΡΠ½ΠΎ ΠΊ ΡΡΠΎΠΌΡ, ΠΌΡ Π²ΠΊΠ»ΡΡΠΈΠ»ΠΈ Π·Π°ΠΏΠ°Ρ ΠΌΠ°ΡΠ΅ΡΠΈΠ°Π»Π°, ΠΊΠΎΡΠΎΡΡΠΉ ΡΡΠΌΠΌΠΈΡΡΠ΅ΡΡΡ Ρ ΠΌΠΈΠ½ΠΈΠΌΠ°Π»ΡΠ½ΠΎ Π½Π΅ΠΎΠ±Ρ ΠΎΠ΄ΠΈΠΌΡΠΌ ΠΊΠΎΠ»ΠΈΡΠ΅ΡΡΠ²ΠΎΠΌ ΡΠΏΠ°ΠΊΠΎΠ²ΠΎΠΊ ΠΈ ΠΎΠΊΡΡΠ³Π»ΡΠ΅ΡΡΡ. ΠΠ»Ρ Π²ΡΠΏΠΎΠ»Π½Π΅Π½ΠΈΡ ΡΠ°ΡΡΠ΅ΡΠΎΠ² Π²Π°ΠΌ Π½ΡΠΆΠ½ΠΎ Π²Π²Π΅ΡΡΠΈ ΠΎΠ±ΡΡΡ ΠΏΠ»ΠΎΡΠ°Π΄Ρ ΠΊΠΎΠΌΠ½Π°ΡΡ, ΠΏΠΎΠΊΡΡΠ²Π°Π΅ΠΌΡΡ ΠΏΠ»ΠΎΡΠ°Π΄Ρ ΠΎΠ΄Π½ΠΎΠΉ ΡΠΏΠ°ΠΊΠΎΠ²ΠΊΠΈ ΠΌΠ°ΡΠ΅ΡΠΈΠ°Π»Π° ΠΈ Π²ΡΠ±ΡΠ°ΡΡ ΠΏΠ»Π°Π½ΠΈΡΡΠ΅ΠΌΡΠΉ ΡΠΏΠΎΡΠΎΠ± ΡΠΊΠ»Π°Π΄ΠΊΠΈ.
[CP_CALCULATED_FIELDS id=β19β³]
ΠΡΠ»ΠΈ Ρ Π²Π°Ρ Π΅ΡΡΡ ΠΊΠ°ΠΊΠΈΠ΅-ΡΠΎ Π·Π°ΠΌΠ΅ΡΠ°Π½ΠΈΡ ΠΈΠ»ΠΈ ΠΏΡΠ΅Π΄Π»ΠΎΠΆΠ΅Π½ΠΈΡ ΠΏΠΎ ΡΠ°Π±ΠΎΡΠ΅ ΠΊΠ°Π»ΡΠΊΡΠ»ΡΡΠΎΡΠ°, ΡΠΎ Π½Π°ΠΏΠΈΡΠΈΡΠ΅ Π°Π΄ΠΌΠΈΠ½ΠΈΡΡΡΠ°ΡΠΎΡΡ ΠΈ ΠΌΡ Π²Π½Π΅ΡΠ΅ΠΌ ΠΊΠΎΡΡΠ΅ΠΊΡΠΈΠ²Ρ Π² Π΅Π³ΠΎ ΡΠ°Π±ΠΎΡΡ.
Π Π°ΡΡΠ΅Ρ ΠΏΠ»ΠΈΠ½ΡΡΡΠ° Π΄Π»Ρ Π»Π°ΠΌΠΈΠ½Π°ΡΠ°
Π Π°ΡΡΠ΅Ρ ΠΏΠ»ΠΈΠ½ΡΡΡΠ° Π±ΠΎΠ»Π΅Π΅ ΠΏΡΠΎΡΡΠ°Ρ Π·Π°Π΄Π°ΡΠ°. ΠΠ»Ρ ΡΡΠΎΠ³ΠΎ ΠΏΠΎΡΡΠ΅Π±ΡΠ΅ΡΡΡ ΠΈΠ·ΠΌΠ΅ΡΠΈΡΡ Π΄Π»ΠΈΠ½Ρ ΠΈ ΡΠΈΡΠΈΠ½Ρ ΠΊΠΎΠΌΠ½Π°ΡΡ, Π° ΡΠ°ΠΊΠΆΠ΅ Π΄Π»ΠΈΠ½Ρ Π΄Π²Π΅ΡΠ½ΠΎΠ³ΠΎ ΠΏΡΠΎΠ΅ΠΌΠ°.
ΠΠ°ΡΠ΅ΠΌ ΡΠ»Π΅Π΄ΡΠ΅Ρ ΡΠ·Π½Π°ΡΡ ΠΌΠ΅ΡΡΠ°ΠΆ ΠΈΠ»ΠΈ Π΄Π»ΠΈΠ½Ρ ΠΎΠ΄Π½ΠΎΠΉ ΡΠ΅ΠΉΠΊΠΈ ΠΏΠ»ΠΈΠ½ΡΡΡΠ°. ΠΠ°ΠΊΠΈΡ
-ΡΠΎ ΠΎΡΠΎΠ±Π΅Π½Π½ΡΡ
ΡΠΎΡΠΌΡΠ» Π΄Π»Ρ ΠΏΠΎΠ΄ΡΡΠ΅ΡΠ° Π½Π΅ ΠΏΠΎΡΡΠ΅Π±ΡΠ΅ΡΡΡ, ΠΏΠΎΡΡΠΎΠΌΡ ΡΡΠ°Π·Ρ ΠΏΠ΅ΡΠ΅ΠΉΠ΄Π΅ΠΌ ΠΊ ΠΏΡΠ°ΠΊΡΠΈΠΊΠ΅.
ΠΠ»ΠΈΠ½Π° ΠΏΠ»ΠΈΠ½ΡΡΡΠ° ΡΠ°Π²Π½Π° ΠΏΠ΅ΡΠΈΠΌΠ΅ΡΡΡ ΠΊΠΎΠΌΠ½Π°ΡΡ Π·Π° Π²ΡΡΠ΅ΡΠΎΠΌ Π΄Π²Π΅ΡΠ½ΡΡ ΠΏΡΠΎΠ΅ΠΌΠΎΠ²
ΠΠ° ΠΈΡΡ ΠΎΠ΄Π½ΡΠ΅ Π΄Π°Π½Π½ΡΠ΅ Π²ΠΎΠ·ΡΠΌΠ΅ΠΌ Π²ΡΠ΅ ΡΠΎΠΆΠ΅ ΠΏΠΎΠΌΠ΅ΡΠ΅Π½ΠΈΡ 7Γ4 ΠΌ. ΠΠ»ΠΈΠ½Π° Π΄Π²Π΅ΡΠ½ΠΎΠ³ΠΎ ΠΏΡΠΎΠ΅ΠΌΠ° β 0,6 ΠΌ. ΠΠ»ΠΈΠ½Π° ΠΌΠΎΠ½ΡΠ°ΠΆΠ½ΠΎΠΉ ΡΠ΅ΠΉΠΊΠΈ ΠΏΠ»ΠΈΠ½ΡΡΡΠ° β 3,6 ΠΌ.
ΠΡΠΈΠΌΠ΅Ρ:
- 7 *2 + 4 * 2 = 22 ΠΌ β ΠΏΠ΅ΡΠΈΠΌΠ΅ΡΡ ΠΊΠΎΠΌΠ½Π°ΡΡ.
- 22 β 0,6 = 21,4 ΠΌ β ΠΏΠ΅ΡΠΈΠΌΠ΅ΡΡ Π·Π° Π²ΡΡΠ΅ΡΠΎΠΌ Π΄Π»ΠΈΠ½Ρ Π΄Π²Π΅ΡΠ½ΠΎΠ³ΠΎ ΠΏΡΠΎΠ΅ΠΌΠ°.
- 21,4 + 5% = 22,5 β Π΄Π»ΠΈΠ½Π° ΠΏΠ»ΠΈΠ½ΡΡΡΠ° Ρ ΡΡΠ΅ΡΠΎΠΌ 5% ΠΌΠ°ΡΠ΅ΡΠΈΠ°Π»Π° Π½Π° ΠΏΠΎΠ΄ΡΠ΅Π·ΠΊΡ.
- 22,5 / 3,6 = 6,25 ΡΡ. β ΠΊΠΎΠ»ΠΈΡΠ΅ΡΡΠ²ΠΎ ΠΌΠΎΠ½ΡΠ°ΠΆΠ½ΡΡ ΡΠ΅Π΅ΠΊ ΠΏΠ»ΠΈΠ½ΡΡΡΠ°.
Π Π½Π°ΡΠ΅ΠΌ ΡΠ»ΡΡΠ°Π΅ ΠΏΠΎΠ»ΡΡΠΈΠ»ΠΎΡΡ, ΡΡΠΎ ΠΏΡΠΈΠ΄Π΅ΡΡΡ Π΄ΠΎΠΊΡΠΏΠ°ΡΡ 7 ΠΏΠ»Π°Π½ΠΊΡ ΠΏΠ»ΠΈΠ½ΡΡΡΠ°. ΠΡΠΎ Π½Π΅ ΠΎΡΠ΅Π½Ρ ΡΠ΄ΠΎΠ±Π½ΠΎ ΠΈ Π²ΡΠ·ΠΎΠ²Π΅Ρ Π»ΠΈΡΠ½ΠΈΠ΅ Π·Π°ΡΡΠ°ΡΡ, Π½ΠΎ ΠΏΠΎΠ»Π½ΠΎΡΡΡΡ ΠΏΠ΅ΡΠ΅ΠΊΡΠΎΠ΅Ρ ΠΌΠ°ΡΠ΅ΡΠΈΠ°Π», Π·Π°ΡΡΠ°ΡΠΈΠ²Π°Π΅ΠΌΡΠΉ Π½Π° ΠΏΠΎΠ΄ΡΠ΅Π·ΠΊΡ ΠΈ ΠΎΠ±Π΅Π·ΠΎΠΏΠ°ΡΠΈΡ Π½Π°Ρ ΠΎΡ Π½Π΅ΠΆΠ΅Π»Π°ΡΠ΅Π»ΡΠ½ΠΎ ΠΏΠΎΡΡΠΈ ΠΎΠ±Π»ΠΈΡΠΎΠ²ΠΊΠΈ ΠΏΡΠΈ ΡΠΊΠ»Π°Π΄ΠΊΠ΅.
Π§ΠΈΡΠ°ΠΉΡΠ΅ ΡΠ°ΠΊΠΆΠ΅:
ΠΠ°ΠΊ ΡΠ°ΡΡΡΠΈΡΠ°ΡΡ Π»Π°ΠΌΠΈΠ½Π°Ρ Π½Π° ΠΊΠΎΠΌΠ½Π°ΡΡ?
Π‘Π΅Π³ΠΎΠ΄Π½Ρ Π»Π°ΠΌΠΈΠ½Π°Ρ ΡΠ²Π»ΡΠ΅ΡΡΡ ΠΎΠ΄Π½ΠΈΠΌΒ ΠΈΠ· ΡΠ°ΠΌΡΡ ΠΏΠΎΠΏΡΠ»ΡΡΠ½ΡΡ Π½Π°ΠΏΠΎΠ»ΡΠ½ΡΡ ΠΏΠΎΠΊΡΡΡΠΈΠΉ. ΠΡΠΈ Π½Π΅Π²ΡΡΠΎΠΊΠΎΠΉ ΡΠ΅Π½Π΅, Π±ΡΡΡΡΠΎ ΡΠΊΠ»Π°Π΄ΡΠ²Π°Π΅ΡΡΡ ΠΈ ΠΊΡΠ°ΡΠΈΠ²ΠΎ ΡΠΌΠΎΡΡΠΈΡΡΡ.Β ΠΠ°ΠΌΠΈΠ½ΠΈΡΠΎΠ²Π°Π½Π½ΡΠΉ ΠΏΠΎΠ» ΠΌΠΎΠΆΠ΅Ρ ΠΈΠΌΠΈΡΠΈΡΠΎΠ²Π°ΡΡ Π΄Π΅ΡΠ΅Π²ΠΎ, Π±ΡΡΡ ΡΠ°Π·Π»ΠΈΡΠ½ΡΡ ΡΠ²Π΅ΡΠΎΠ², ΠΈ ΠΏΡΠΈ ΡΡΠΎΠΌ ΡΠ²Π»ΡΠ΅ΡΡΡ ΡΠ½ΠΈΠ²Π΅ΡΡΠ°Π»ΡΠ½ΡΠΌ ΠΏΠΎΠΊΡΡΡΠΈΠ΅ΠΌ, ΠΊΠΎΡΠΎΡΠΎΠ΅ ΠΌΠΎΠΆΠ΅Ρ ΠΏΠΎΠ΄ΠΎΠΉΡΠΈ Π΄Π»Ρ ΡΠΊΠ»Π°Π΄ΠΊΠΈ ΠΊΠ°ΠΊ Π²Β Π²Π°Π½Π½ΠΎΠΉ ΠΊΠΎΠΌΠ½Π°ΡΠ΅, ΡΠ°ΠΊ ΠΈ Π½Π° ΠΊΡΡ Π½Π΅. ΠΠ»Ρ ΠΏΡΠ°Π²ΠΈΠ»ΡΠ½ΠΎΠ³ΠΎ ΠΏΠΎΠ΄ΡΡΠ΅ΡΠ° Π»Π°ΠΌΠΈΠ½Π°ΡΠ°, Π½ΡΠΆΠ½ΠΎ Π·Π½Π°ΡΡ Π½Π΅ΠΊΠΎΡΠΎΡΡΠ΅ ΠΏΡΠ°Π²ΠΈΠ»Π°.Β
ΠΠ΅ΡΠ΅Π΄ ΡΠ΅ΠΌ, ΠΊΠ°ΠΊ ΡΠ°ΡΡΡΠΈΡΠ°ΡΡ ΠΊΠΎΠ»ΠΈΡΠ΅ΡΡΠ²ΠΎ Π»Π°ΠΌΠΈΠ½Π°ΡΠ° Π½Π° ΠΊΠΎΠΌΠ½Π°ΡΡ, Π½Π΅ΠΎΠ±Ρ ΠΎΠ΄ΠΈΠΌΠΎ ΠΎΠΏΡΠ΅Π΄Π΅Π»ΠΈΡΡ ΠΊΠ°ΠΊΠΎΠΉ ΡΠΈΠΏ ΡΠΊΠ»Π°Π΄ΠΊΠΈ Π½Π°ΠΏΠΎΠ»ΡΠ½ΠΎΠ³ΠΎ ΠΏΠΎΠΊΡΡΡΠΈΡ Π±ΡΠ΄Π΅Ρ ΠΈΡΠΏΠΎΠ»ΡΠ·ΠΎΠ²Π°ΡΡΡΡ —Β ΠΏΠ°ΡΠ°Π»Π»Π΅Π»ΡΠ½ΠΎ ΡΡΠ΅Π½Π°ΠΌ ΠΈΠ»ΠΈ ΠΏΠΎ Π΄ΠΈΠ°Π³ΠΎΠ½Π°Π»ΠΈ — ΠΎΡ ΡΠΈΠΏΠ° ΡΠΊΠ»Π°Π΄ΠΊΠΈ Π·Π°Π²ΠΈΡΠΈΡ ΠΏΡΠΎΡΠ΅Π½Ρ Π·Π°ΠΏΠ°ΡΠ° Π½Π° ΠΏΠΎΠ΄ΡΠ΅Π·ΠΊΡ (ΠΎΡ 5 Π΄ΠΎ 7-10%).
Π’Π°ΠΊΠΆΠ΅ Π½ΡΠΆΠ½ΠΎ ΡΡΠΈΡΡΠ²Π°ΡΡ ΡΠΎΡΠΌΡ ΠΊΠΎΠΌΠ½Π°ΡΡ (ΠΈΠΌΠ΅ΡΡΡΡ Π»ΠΈ Π²ΡΡΡΡΠΏΠ°ΡΡΠΈΠ΅ ΡΠ°ΡΡΠΈ, ΡΠ·ΠΊΠΎΠ΅ Π»ΠΈ ΠΏΠΎΠΌΠ΅ΡΠ΅Π½ΠΈΠ΅), ΠΏΡΠΎΡΠ΅Π½Ρ Π·Π°ΠΏΠ°ΡΠ° Π² Π·Π°Π²ΠΈΡΠΈΠΌΠΎΡΡΠΈ ΠΎΡ ΡΡΠΎΠ³ΠΎ ΡΠΎΠΆΠ΅ ΠΌΠΎΠΆΠ΅Ρ ΠΊΠΎΠ»Π΅Π±Π°ΡΡΡΡ ΠΎΡ 5 Π΄ΠΎ 10%.
ΠΠ°ΠΌΠΈΠ½Π°Ρ ΠΏΡΠΎΠ΄Π°Π΅ΡΡΡ ΡΠΏΠ°ΠΊΠΎΠ²ΠΊΠ°ΠΌΠΈ. Π ΡΡΠ΅Π΄Π½Π΅ΠΌ, ΠΎΠ΄Π½Π° ΡΠΏΠ°ΠΊΠΎΠ²ΠΊΠ° Π»Π°ΠΌΠΈΠ½Π°ΡΠ° ΡΠ°ΡΡΡΠΈΡΠ°Π½Π° Π΄Π»Ρ ΡΠΊΠ»Π°Π΄ΠΊΠΈ 2 ΠΊΠ².
ΠΌΠ΅ΡΡΠΎΠ². ΠΡΠΎΠ±Π»Π΅ΠΌΠ° Π·Π°ΠΊΠ»ΡΡΠ°Π΅ΡΡΡ Π² ΡΠΎΠΌ,Β ΡΡΠΎ Π² ΠΊΠΎΠ»Π»Π΅ΠΊΡΠΈΡΡ
ΠΎΡ ΡΠ°Π·Π½ΡΡ
ΠΏΡΠΎΠΈΠ·Π²ΠΎΠ΄ΠΈΡΠ΅Π»Π΅ΠΉ ΠΊΠΎΠ»ΠΈΡΠ΅ΡΡΠ²ΠΎ Π΄ΠΎΡΠΎΠΊ ΡΠ°Π·Π»ΠΈΡΠ°Π΅ΡΡΡ.Β
Π Π΄Π°Π½Π½ΠΎΠΉ ΡΡΠ°ΡΡΠ΅ ΡΠ΅ΡΡ ΠΏΠΎΠΉΠ΄Π΅Ρ ΠΎ ΡΠΎΠΌ, ΠΊΠ°ΠΊ ΠΏΡΠ°Π²ΠΈΠ»ΡΠ½ΠΎ ΡΠ°ΡΡΡΠΈΡΠ°ΡΡ Π»Π°ΠΌΠΈΠ½Π°Ρ ΠΏΠΎ ΠΏΠ»ΠΎΡΠ°Π΄ΠΈ ΠΊΠΎΠΌΠ½Π°ΡΡ, ΠΏΠΎ ΡΠΈΠΏΡ ΡΠΊΠ»Π°Π΄ΠΊΠΈ ΠΈ ΠΊΠ°ΠΊ ΡΠ΄Π΅Π»Π°ΡΡ ΡΡΠΎ ΡΠ°ΠΊ, ΡΡΠΎΠ±ΡΒ ΠΏΡΠΈ ΡΠΊΠ»Π°Π΄ΠΊΠ΅ Π±ΡΠ»ΠΎ ΠΌΠΈΠ½ΠΈΠΌΡΠΌ ΠΎΡΡ ΠΎΠ΄ΠΎΠ².Β
Π§ΡΠΎ Π½ΡΠΆΠ½ΠΎ ΡΠ΄Π΅Π»Π°ΡΡ ΠΏΠ΅ΡΠ΅Π΄ ΡΠ°ΡΡΠ΅ΡΠΎΠΌ?
ΠΠΎ-ΠΏΠ΅ΡΠ²ΡΡ , ΡΠ»Π΅Π΄ΡΠ΅Ρ ΠΈΠ·ΠΌΠ΅ΡΠΈΡΡ Π΄Π»ΠΈΠ½Ρ ΠΈ ΡΠΈΡΠΈΠ½Ρ ΠΊΠΎΠΌΠ½Π°ΡΡ, Π² ΠΊΠΎΡΠΎΡΠΎΠΉ Π±ΡΠ΄Π΅Ρ ΡΠΊΠ»Π°Π΄ΡΠ²Π°ΡΡΡΡ Π½Π°ΠΏΠΎΠ»ΡΠ½ΠΎΠ΅ ΠΏΠΎΠΊΡΡΡΠΈΠ΅. ΠΡΠ»ΠΈ ΠΊΠΎΠΌΠ½Π°ΡΠ° ΠΈΠΌΠ΅Π΅Ρ Π½Π΅ΡΡΠ°Π½Π΄Π°ΡΡΠ½ΡΡ ΡΠΎΡΠΌΡ, Π²ΡΠ΅ Π΄ΠΎΠΏΠΎΠ»Π½ΠΈΡΠ΅Π»ΡΠ½ΡΠ΅ ΡΠ³Π»ΡΠ±Π»Π΅Π½ΠΈΡ ΠΈΠ»ΠΈ Π²ΡΡΡΡΠΏΡ ΡΠ»Π΅Π΄ΡΠ΅Ρ ΡΡΠΈΡΠ°ΡΡ ΠΎΡΠ΄Π΅Π»ΡΠ½ΠΎ.Β
ΠΠΎ-Π²ΡΠΎΡΡΡ , ΠΏΠ΅ΡΠ΅Π΄ ΡΠ΅ΠΌ ΠΊΠ°ΠΊ ΡΠ°ΡΡΡΠΈΡΠ°ΡΡ ΠΊΠΎΠ»ΠΈΡΠ΅ΡΡΠ²ΠΎ Π»Π°ΠΌΠΈΠ½Π°ΡΠ°, Π½ΡΠΆΠ½ΠΎ ΡΠΎΡΡΠ°Π²ΠΈΡΡ ΠΏΠ»Π°Π½ ΠΏΠΎΠΌΠ΅ΡΠ΅Π½ΠΈΡ. ΠΠ±ΠΎΠ·Π½Π°ΡΡΡΠ΅ Π½Π° Π½Π΅ΠΌ Π²ΡΠ΅ Π½ΠΈΡΠΈ, Π΄Π²Π΅ΡΠ½ΡΠ΅ ΠΏΡΠΎΡ ΠΎΠ΄Ρ, Π° ΡΠ°ΠΊΠΆΠ΅ Π±Π°ΡΠ°ΡΠ΅ΠΈ ΠΈ ΡΠ°Π΄ΠΈΠ°ΡΠΎΡΡ ΠΎΡΠΎΠΏΠ»Π΅Π½ΠΈΡ.
Π-ΡΡΠ΅ΡΡΠΈΡ , Π½Π΅ΠΎΠ±Ρ ΠΎΠ΄ΠΈΠΌΠΎ Π·Π½Π°ΡΡ Π΄Π»ΠΈΠ½Ρ ΠΈ ΡΠΈΡΠΈΠ½Ρ Π»Π°ΠΌΠΈΠ½ΠΈΡΠΎΠ²Π°Π½Π½ΠΎΠΉ Π΄ΠΎΡΠΊΠΈ, Π° ΡΠ°ΠΊΠΆΠ΅, ΡΠΊΠΎΠ»ΡΠΊΠΎ ΠΊΠ²Π°Π΄ΡΠ°ΡΠ½ΡΡ ΠΌΠ΅ΡΡΠΎΠ² ΠΏΠΎΠΊΡΡΠ²Π°Π΅Ρ ΠΎΠ΄Π½Π° ΡΠΏΠ°ΠΊΠΎΠ²ΠΊΠ°.Β
ΠΠ΅ ΡΠ»Π΅Π΄ΡΠ΅Ρ Π·Π°Π±ΡΠ²Π°ΡΡ ΠΏΡΠΎ Π·Π°ΠΏΠ°Ρ ΠΌΠ°ΡΠ΅ΡΠΈΠ°Π»Π°. ΠΠΈΠ½ΠΈΠΌΠ°Π»ΡΠ½ΠΎΠ΅ ΠΊΠΎΠ»ΠΈΡΠ΅ΡΡΠ²ΠΎ β Π½Π° 7-10% Π±ΠΎΠ»ΡΡΠ΅.
3 ΡΠΏΠΎΡΠΎΠ±Π° Π΄Π»Ρ ΠΏΡΠ°Π²ΠΈΠ»ΡΠ½ΠΎΠ³ΠΎ ΡΠ°ΡΡΠ΅ΡΠ° Π»Π°ΠΌΠΈΠ½Π°ΡΠ°.
1 ΡΠΏΠΎΡΠΎΠ±
ΠΠ°Π½Π½ΡΠΉ Π²Π°ΡΠΈΠ°Π½Ρ ΡΠ°ΡΡΠ΅ΡΠ° Π»Π°ΠΌΠΈΠ½Π°ΡΠ° ΡΠ²Π»ΡΠ΅ΡΡΡ ΠΏΡΠΎΡΡΡΠΌ, Π½ΠΎΒ ΠΈΠΌΠ΅Π΅Ρ Π½Π΅ΠΊΠΎΡΠΎΡΡΠ΅ ΠΏΠΎΠ³ΡΠ΅ΡΠ½ΠΎΡΡΠΈ. ΠΡΠΏΠΎΠ»ΡΠ·ΠΎΠ²Π°ΡΡ ΡΡΠΎΡ Π²Π°ΡΠΈΠ°Π½Ρ ΡΡΠΎΠΈΡ, Π΅ΡΠ»ΠΈΒ Π² ΠΊΠΎΠΌΠ½Π°ΡΠ΅ ΡΠΎΠ²Π½ΡΠ΅ ΡΡΠ΅Π½Ρ ΠΈ Π½Π΅Ρ Π²ΡΡΡΡΠΏΠΎΠ² ΠΈΠ»ΠΈ Π½ΠΈΡ.Β ΠΠ΅ΡΠ²ΡΠΌ Π΄Π΅Π»ΠΎΠΌ ΡΠ»Π΅Π΄ΡΠ΅Ρ ΡΠ°ΡΡΡΠΈΡΠ°ΡΡ ΠΏΠ»ΠΎΡΠ°Π΄Ρ ΠΏΠΎΠΌΠ΅ΡΠ΅Π½ΠΈΡ. ΠΠ»Ρ Π½Π°Ρ ΠΎΠΆΠ΄Π΅Π½ΠΈΡ ΠΏΠ»ΠΎΡΠ°Π΄ΠΈ Π½Π΅ΠΎΠ±Ρ ΠΎΠ΄ΠΈΠΌΠΎ Π·Π½Π°ΡΡ Π΄Π»ΠΈΠ½Ρ ΠΈ ΡΠΈΡΠΈΠ½Ρ ΠΊΠΎΠΌΠ½Π°ΡΡ. Π Π½Π°ΡΠ΅ΠΌ ΡΠ»ΡΡΠ°Π΅ Π΄Π»ΠΈΠ½Π° β 5,5 ΠΌΠ΅ΡΡΠΎΠ², Π° ΡΠΈΡΠΈΠ½Π° β 2,5.
β’ ΠΏΠ΅ΡΠ΅ΠΌΠ½ΠΎΠΆΠΈΠΌ Π΄Π»ΠΈΠ½Ρ Π½Π° ΡΠΈΡΠΈΠ½Ρ: 5,5*2,5=13,75 ΠΊΠ². ΠΌΠ΅ΡΡΠ°.
β’ Ρ Π»ΡΠ±ΠΎΠ³ΠΎ ΠΏΠΎΠΌΠ΅ΡΠ΅Π½ΠΈΡ Π΅ΡΡΡ Π½Π΅Π±ΠΎΠ»ΡΡΠΎΠΉ ΡΡΠ°ΡΡΠΎΠΊ, ΠΊΠΎΡΠΎΡΡΠΉ ΡΠΎΠ΅Π΄ΠΈΠ½ΡΠ΅Ρ Π΅Π³ΠΎ Ρ ΠΊΠΎΡΠΈΠ΄ΠΎΡΠΎΠΌ. ΠΡΡΡΡ Π΅Π³ΠΎ ΡΠ°Π·ΠΌΠ΅ΡΡβ 1,25 ΠΌ Π½Π° 75 ΡΠΌ. ΠΠ»ΠΎΡΠ°Π΄Ρ Π΄Π°Π½Π½ΠΎΠ³ΠΎ ΡΡΠ°ΡΡΠΊΠ° Π±ΡΠ΄Π΅Ρ ΡΠ°Π²Π½Π° 0,95 ΠΌ2 (1,25*0,75).
β’ ΡΠΊΠ»Π°Π΄ΡΠ²Π°Π΅ΠΌ Π΄Π²Π° ΠΏΠΎΠ»ΡΡΠ΅Π½Π½ΡΡ ΡΠ΅Π·ΡΠ»ΡΡΠ°ΡΠ° ΠΈ ΠΏΠΎΠ»ΡΡΠΈΠΌΒ ΠΎΠ±ΡΡΡ ΠΏΠ»ΠΎΡΠ°Π΄Ρ. 13,75+0,95=14,7 ΠΌ2.
Π’Π΅ΠΏΠ΅ΡΡ Π½Π΅ΠΎΠ±Ρ
ΠΎΠ΄ΠΈΠΌΠΎ ΠΏΠΎΡΡΠΈΡΠ°ΡΡ, ΡΠΊΠΎΠ»ΡΠΊΠΎ ΡΠΏΠ°ΠΊΠΎΠ²ΠΎΠΊ Π»Π°ΠΌΠΈΠ½Π°ΡΠ° Π½Π΅ΠΎΠ±Ρ
ΠΎΠ΄ΠΈΠΌΠΎ Π΄Π»Ρ ΡΠΊΠ»Π°Π΄ΠΊΠΈ ΠΏΠΎΠΌΠ΅ΡΠ΅Π½ΠΈΡΒ Ρ ΡΠ°ΠΊΠΈΠΌΠΈ ΠΏΠ°ΡΠ°ΠΌΠ΅ΡΡΠ°ΠΌΠΈ. ΠΠΎΠΏΡΡΡΠΈΠΌ, ΠΌΡ Π²ΡΠ±ΡΠ°Π»ΠΈ Π±Π΅Π»ΡΠ³ΠΈΠΉΡΠΊΠΈΠΉ Π»Π°ΠΌΠΈΠ½Π°Ρ Balterio Xpressions. ΠΠ΄Π½Π° ΠΏΠ°ΡΠΊΠ° Π»Π°ΠΌΠΈΠ½Π°ΡΠ° Π΄Π°Π½Π½ΠΎΠ³ΠΎ ΠΌΠ°ΡΠΊΠΈ ΡΠ°ΡΡΡΠΈΡΠ°Π½Π° Π½Π° ΠΏΠΎΠΊΡΡΡΠΈΠ΅ 2,162 ΠΊΠ². ΠΌΠ΅ΡΡΠΎΠ² ΠΈ ΡΠΎΠ΄Π΅ΡΠΆΠΈΡ 9 Π΄ΠΎΡΠΎΠΊ.
ΠΠ»Ρ ΡΡΠΎΠ³ΠΎ ΡΠ»Π΅Π΄ΡΠ΅Ρ ΡΠ°Π·Π΄Π΅Π»ΠΈΡΡΒ ΠΎΠ±ΡΡΡ ΠΏΠ»ΠΎΡΠ°Π΄Ρ ΠΊΠΎΠΌΠ½Π°ΡΡ Π½Π° ΠΏΠ»ΠΎΡΠ°Π΄Ρ, ΠΊΠΎΡΠΎΡΠ°Ρ ΡΠΊΠ°Π·Π°Π½Π° Π½Π° ΡΠΏΠ°ΠΊΠΎΠ²ΠΊΠ΅. ΠΠΎΠ»ΡΡΠ°Π΅ΠΌ β 14,7/2,162=6,8. ΠΠΎΠ»ΡΡΠΈΠ²ΡΠ΅Π΅ΡΡ ΡΠΈΡΠ»ΠΎ ΡΠ°Π²Π½ΡΠ΅ΡΡΡ Π½Π΅ΠΎΠ±Ρ
ΠΎΠ΄ΠΈΠΌΠΎΠΌΡ ΠΊΠΎΠ»ΠΈΡΠ΅ΡΡΠ²Ρ ΠΏΠ°ΡΠ΅ΠΊ. ΠΠ»Ρ ΡΠΎΠ³ΠΎ, ΡΡΠΎΠ±Ρ Π±ΡΡΡ ΡΠ²Π΅ΡΠ΅Π½Π½ΡΠΌ, ΡΡΠΎ ΠΌΠ°ΡΠ΅ΡΠΈΠ°Π»Π° Ρ
Π²Π°ΡΠΈΡΡ ΠΏΠΎΠ»ΡΡΠ΅Π½Π½ΠΎΠ΅ ΡΠΈΡΠ»ΠΎ ΡΠ»Π΅Π΄ΡΠ΅Ρ ΠΎΠΊΡΡΠ³Π»ΠΈΡΡ Π² Π±ΠΎΠ»ΡΡΡΡ ΡΡΠΎΡΠΎΠ½Ρ.Β
ΠΠ΅ ΡΠ»Π΅Π΄ΡΠ΅Ρ Π·Π°Π±ΡΠ²Π°ΡΡ, ΡΡΠΎ Π½Π΅ΠΎΠ±Ρ ΠΎΠ΄ΠΈΠΌΠΎ ΡΡΠΈΡΡΠ²Π°ΡΡ Π΄ΠΎΠ±Π°Π²Π»Π΅Π½Π½ΡΠΉ ΡΠ°ΡΡ ΠΎΠ΄. ΠΡΠΎ ΠΌΠΎΠΆΠ΅Ρ Π±ΡΡΡ Π±ΡΠ°ΠΊ, Π²Π΅Π»ΠΈΡΠΈΠ½Ρ ΡΠΌΠ΅ΡΠ΅Π½ΠΈΡ, Π½Π΅ΡΠ΄Π°ΡΠ½ΡΡ ΡΠ°Π·ΠΌΠ΅ΡΠΊΡ ΠΈ ΠΏΡΠΎΡΠΈΠ΅ ΠΏΠΎΠ³ΡΠ΅ΡΠ½ΠΎΡΡΠΈ. ΠΠ»Ρ ΡΡΠΎΠ³ΠΎ:
β’ ΠΏΠΎΠ»ΡΡΠ΅Π½Π½ΠΎΠ΅ ΡΠΈΡΠ»ΠΎ ΡΠ»Π΅Π΄ΡΠ΅Ρ ΡΠ²Π΅Π»ΠΈΡΠΈΡΡ Π½Π° 7%β Π΅ΡΠ»ΠΈ ΠΏΠ»Π°Π½ΠΈΡΡΠ΅ΡΡΡ ΠΏΡΡΠΌΠ°Ρ ΡΠΊΠ»Π°Π΄ΠΊΠ°;
β’ Π½Π° 10% β Π΅ΡΠ»ΠΈ Π΄ΠΈΠ°Π³ΠΎΠ½Π°Π»ΡΠ½Π°Ρ.
Π ΡΠ°ΡΡΠΌΠΎΡΡΠ΅Π½Π½ΠΎΠΌ ΠΏΡΠΈΠΌΠ΅ΡΠ΅ Π΄Π»Ρ ΡΠΊΠ»Π°Π΄ΠΊΠΈ ΠΊΠΎΠΌΠ½Π°ΡΡ ΠΏΡΡΠΌΡΠΌ ΡΠΏΠΎΡΠΎΠ±ΠΎΠΌ Π΄ΠΎΡΡΠ°ΡΠΎΡΠ½ΠΎ 7 ΡΠΏΠ°ΠΊΠΎΠ²ΠΎΠΊ Π²ΡΠ±ΡΠ°Π½Π½ΠΎΠ³ΠΎ Π»Π°ΠΌΠΈΠ½Π°ΡΠ°, Π° Π΄Π»Ρ Π΄ΠΈΠ°Π³ΠΎΠ½Π°Π»ΡΠ½ΠΎΠ³ΠΎ β Π½Π΅ΠΎΠ±Ρ ΠΎΠ΄ΠΈΠΌΠΎ 8.
2 ΡΠΏΠΎΡΠΎΠ±
ΠΡΠ»ΠΈ Π² ΠΏΠΎΠΌΠ΅ΡΠ΅Π½ΠΈΠΈ, Π² ΠΊΠΎΡΠΎΡΠΎΠΌ Π±ΡΠ΄Π΅Ρ ΡΠΊΠ»Π°Π΄ΡΠ²Π°ΡΡΡΡ Π»Π°ΠΌΠΈΠ½Π°Ρ, Π΅ΡΡΡ Π²ΡΡΡΡΠΏΡ, ΠΊΠΎΠ»ΠΎΠ½Π½Ρ ΠΈ Π½ΠΈΡΠΈ, ΡΠ»Π΅Π΄ΡΠ΅Ρ ΠΈΡΠΏΠΎΠ»ΡΠ·ΠΎΠ²Π°ΡΡ Π΄ΡΡΠ³ΠΎΠΉ, Π±ΠΎΠ»Π΅Π΅ ΡΠ΄ΠΎΠ±Π½ΡΠΉ ΡΠΏΠΎΡΠΎΠ± ΠΏΠΎΠ΄ΡΡΠ΅ΡΠ°.Β
ΠΠ»ΠΈΠ½Π° ΠΈ ΡΠΈΡΠΈΠ½Π° ΠΎΠ΄Π½ΠΎΠΉ Π΄ΠΎΡΠΊΠΈ Π² ΡΠΏΠ°ΠΊΠΎΠ²ΠΊΠ΅ Π»Π°ΠΌΠΈΠ½Π°ΡΠ° Balterio Xpressions ΡΠ°Π²Π½Ρ 1261Ρ 190,5 ΠΌΠΌ. ΠΡΡΠ°Π·ΠΈΠΌ ΡΠ°Π·ΠΌΠ΅ΡΡ Π² ΠΌΠ΅ΡΡΠ°Ρ β 1,26Ρ 0,19 ΠΌ. ΠΠ΄Π΅ΡΡ ΡΡΠΎΠΈΡ Π±ΡΡΡ Π²Π½ΠΈΠΌΠ°ΡΠ΅Π»ΡΠ½ΡΠΌΠΈ, ΡΠ°ΠΊ ΠΊΠ°ΠΊ Π² ΡΡΠΎΠΌ ΡΠ»ΡΡΠ°Π΅,Β ΠΌΡ ΠΎΡΠΈΠ΅Π½ΡΠΈΡΡΠ΅ΠΌΡΡ Π½Π΅ Π½Π° ΠΏΠ»ΠΎΡΠ°Π΄Ρ, Π° Π½Π° Π΄Π»ΠΈΠ½Ρ ΡΡΠΎΡΠΎΠ½.
β’ Π΄Π»ΠΈΠ½Π° ΠΊΠΎΠΌΠ½Π°ΡΡ β 5,5 ΠΌ, Π° Π΄ΠΎΡΠΊΠΈ β 1,26 ΠΌ. Π£Π·Π½Π°Π΅ΠΌ, ΡΠΊΠΎΠ»ΡΠΊΠΎ ΡΡΡΠΊ Π½Π΅ΠΎΠ±Ρ ΠΎΠ΄ΠΈΠΌΠΎ Π΄Π»Ρ ΠΏΠΎΠΊΡΡΡΠΈΡ Π΄Π»ΠΈΠ½Ρ: 5,5/1,26=4,36.ΠΠΊΡΡΠ³Π»ΠΈΠΌ Π΄ΠΎ 5.
β’ ΡΠΈΡΠΈΠ½Π° ΠΊΠΎΠΌΠ½Π°ΡΡ β 2,5 ΠΌ, Π»Π°ΠΌΠ΅Π»ΠΈ β 0,19 ΠΌ. Π‘ΡΠΈΡΠ°Π΅ΠΌ: 2,5/0,19=13,1. ΠΠΊΡΡΠ³Π»ΠΈΠΌ Π΄ΠΎ 14.
β’ ΡΠΌΠ½ΠΎΠΆΠΈΠΌ Π΄Π»ΠΈΠ½Ρ Π½Π° ΡΠΈΡΠΈΠ½Ρ: 14*5=70. ΠΠ½Π°ΡΠΈΡ Π½Π°ΠΌ ΠΏΠΎΡΡΠ΅Π±ΡΠ΅ΡΡΡ 70 Π΄ΠΎΡΠΎΠΊ.
β’ cΠ»Π΅Π΄ΡΠ΅Ρ Π½Π΅ Π·Π°Π±ΡΠ²Π°ΡΡ ΠΎ ΡΠΎΠΌ ΡΡΠ°ΡΡΠΊΠ΅, ΠΊΠΎΡΠΎΡΡΠΉ ΡΠΎΠ΅Π΄ΠΈΠ½ΡΠ΅Ρ ΠΊΠΎΠΌΠ½Π°ΡΡ Ρ ΠΊΠΎΡΠΈΠ΄ΠΎΡΠΎΠΌ. ΠΠΎ, ΠΎΠΊΡΡΠ³Π»ΠΈΠ² ΠΊΠΎΠ»ΠΈΡΠ΅ΡΡΠ²ΠΎ Π΄ΠΎΡΠΎΠΊ Π² Π±ΠΎΠ»ΡΡΡΡ ΡΡΠΎΡΠΎΠ½Ρ, ΠΏΠ»ΠΎΡΠ°Π΄Ρ ΡΡΠΎΠ³ΠΎ ΡΡΠ°ΡΡΠΊΠ° ΠΌΠΎΠΆΠ½ΠΎ Π½Π΅ Π²ΡΡΡΠΈΡΡΠ²Π°ΡΡ, ΠΌΠΎΠΆΠ½ΠΎ Π±ΡΡΡ ΡΠ²Π΅ΡΠ΅Π½Π½ΡΠΌΠΈ, ΡΡΠΎ ΠΌΠ°ΡΠ΅ΡΠΈΠ°Π»Π° Π½Π°ΠΌ ΡΠΎΡΠ½ΠΎ Ρ Π²Π°ΡΠΈΡ.
β’ Π² ΡΠΏΠ°ΠΊΠΎΠ²ΠΊΠ΅ β 9 ΠΏΠ°Π½Π΅Π»Π΅ΠΉ, Π° Π²ΡΠ΅Π³ΠΎ Π½ΡΠΆΠ½ΠΎ 70.70/9=7,7. ΠΠΊΡΡΠ³Π»ΡΠ΅ΠΌ Π΄ΠΎ Π±ΠΎΠ»ΡΡΠ΅Π³ΠΎ Π·Π½Π°ΡΠ΅Π½ΠΈΡ ΠΈ ΠΏΠΎΠ»ΡΡΠ°Π΅ΠΌ 8. ΠΠ½Π°ΡΠΈΡ Π΄Π»Ρ ΠΏΠΎΠΊΡΡΡΠΈΡ ΠΊΠΎΠΌΠ½Π°ΡΡ Ρ ΠΏΠ°ΡΠ°ΠΌΠ΅ΡΡΠ°ΠΌΠΈ 5,5*2,5 Π½Π΅ΠΎΠ±Ρ ΠΎΠ΄ΠΈΠΌΠΎ 8 ΡΠΏΠ°ΠΊΠΎΠ²ΠΎΠΊ Π»Π°ΠΌΠΈΠ½Π°ΡΠ°.Β
3 ΡΠΏΠΎΡΠΎΠ±
Π Π°ΡΡΡΠΈΡΠ°ΡΡ ΠΊΠΎΠ»ΠΈΡΠ΅ΡΡΠ²ΠΎ Π»Π°ΠΌΠΈΠ½Π°ΡΠ° Π΄Π»Ρ ΡΠΊΠ»Π°Π΄ΠΊΠΈ ΠΊΠΎΠΌΠ½Π°ΡΡ ΠΌΠΎΠΆΠ½ΠΎ Ρ ΠΏΠΎΠΌΠΎΡΡΡ ΡΠΏΠ΅ΡΠΈΠ°Π»ΡΠ½ΠΎΠ³ΠΎ ΠΊΠ°Π»ΡΠΊΡΠ»ΡΡΠΎΡΠ°, ΠΊΠΎΡΠΎΡΡΠΉ ΠΌΠΎΠΆΠ½ΠΎ Π½Π°ΠΉΡΠΈ Π² ΠΠ½ΡΠ΅ΡΠ½Π΅ΡΠ΅.
Π’Π°ΠΊΠΎΠΉ ΠΊΠ°Π»ΡΠΊΡΠ»ΡΡΠΎΡ Π²ΠΊΠ»ΡΡΠ°ΡΡ Π² ΡΠ΅Π±Ρ ΠΈ ΡΠΏΠΎΡΠΎΠ± ΡΠΊΠ»Π°Π΄ΠΊΠΈ: ΠΏΡΡΠΌΠΎΠΉ, ΠΏΠΎ Π΄ΠΈΠ°Π³ΠΎΠ½Π°Π»ΠΈ ΠΈΠ»ΠΈ ΠΏΠΎ ΡΠΈΡΠΈΠ½Π΅. ΠΠΎΡ ΠΎΠ΄ΠΈΠ½ ΠΈΠ· Π²Π°ΡΠΈΠ°Π½ΡΠΎΠ² ΡΠ°ΠΊΠΎΠ³ΠΎ ΠΊΠ°Π»ΡΠΊΡΠ»ΡΡΠΎΡΠ°.
Π‘ΠΊΠΎΠ»ΡΠΊΠΎ ΠΏΠΎΠ½Π°Π΄ΠΎΠ±ΠΈΡΡΡ ΠΏΠ»ΠΈΠ½ΡΡΡΠ°?
ΠΡΠΎΠΌΠ΅ ΡΠ°ΡΡΠ΅ΡΠ° Π½Π°ΠΏΠΎΠ»ΡΠ½ΠΎΠ³ΠΎ ΠΏΠΎΠΊΡΡΡΠΈΡ, Π²Π°ΠΆΠ½ΠΎ Π²ΡΠ±ΡΠ°ΡΡ ΠΈ ΠΊΡΠΏΠΈΡΡ ΠΏΠ»ΠΈΠ½ΡΡΡ.Β ΠΠ»Ρ ΠΏΡΠ°Π²ΠΈΠ»ΡΠ½ΠΎΠ³ΠΎ ΡΠ°ΡΡΠ΅ΡΠ° ΡΠ»Π΅Π΄ΡΠ΅Ρ ΠΏΡΠΈΠ΄Π΅ΡΠΆΠΈΠ²Π°ΡΡΡΡ Π½Π΅ΠΊΠΎΡΠΎΡΡΡ ΠΏΡΠ°Π²ΠΈΠ».Β
β’ ΠΠ»Ρ Π½Π°ΡΠ°Π»Π° ΡΠ»Π΅Π΄ΡΠ΅Ρ ΠΏΠΎΡΡΠΈΡΠ°ΡΡΒ ΠΏΠ΅ΡΠΈΠΌΠ΅ΡΡ ΠΊΠΎΠΌΠ½Π°ΡΡ. Π‘Π»ΠΎΠΆΠΈΠ² Π΄Π»ΠΈΠ½Ρ Π²ΡΠ΅Ρ ΡΡΠΎΡΠΎΠ½, ΠΌΠΎΠΆΠ½ΠΎ ΠΏΠΎΠ»ΡΡΠΈΡΡ ΠΏΠ΅ΡΠΈΠΌΠ΅ΡΡ.
β’ ΠΠ΅ ΡΠ»Π΅Π΄ΡΠ΅Ρ Π·Π°Π±ΡΠ²Π°ΡΡ ΠΏΡΠΎ Π·Π°ΠΏΠ°Ρ, Π΄Π»Ρ ΡΡΠΎΠ³ΠΎ Π½ΡΠΆΠ½ΠΎ ΠΏΡΠΈΠ±Π°Π²ΠΈΡΡ 10% ΠΎΡ ΠΏΠΎΠ»ΡΡΠΈΠ²ΡΠ΅Π³ΠΎΡΡ ΡΠΈΡΠ»Π°.Β
β’ ΠΠ»Ρ ΠΏΡΠΈΠΌΠ΅ΡΠ° ΡΠ°ΡΡΠ΅ΡΠΎΠ² Π²ΠΎΠ·ΡΠΌΠ΅ΠΌ Π΄Π»ΠΈΠ½Ρ ΠΏΠ»ΠΈΠ½ΡΡΡΠ° 2,5 ΠΌΠ΅ΡΡΠ°, Π° ΠΎΡΡΠ°Π»ΡΠ½ΡΠ΅ ΠΏΠΎΠΊΠ°Π·Π°ΡΠ΅Π»ΠΈ ΠΎΡΡΠ°Π²ΠΈΠΌ ΠΏΡΠ΅ΠΆΠ½ΠΈΠΌΠΈ. ΠΠΎΠ±Π°Π²ΠΈΠΌ Π΅ΡΠ΅ ΡΠΈΡΠΈΠ½Ρ Π΄Π²Π΅ΡΠ½ΠΎΠ³ΠΎ ΠΏΡΠΎΠ΅ΠΌΠ° 0,8 ΠΌΠ΅ΡΡΠ°.Β
β’ ΠΡΠ°ΠΊ, ΠΏΠ΅ΡΠΈΠΌΠ΅ΡΡ ΠΊΠΎΠΌΠ½Π°ΡΡ Π±Π΅Π· ΠΏΡΠΎΠ΅ΠΌΠ° 15,2 ΠΌΠ΅ΡΡΠ°. ΠΡΠΈΠ±Π°Π²ΠΈΠΌΒ 10% Ρ Π·Π°ΠΏΠ°ΡΠΎΠΌ ΠΈ ΡΡΠ΅ΡΠΎΠΌ Π½ΠΈΡΠΈ β ΠΏΠΎΠ»ΡΡΠΈΠΌ 16,72 ΠΌ.Β
β’ Π’Π΅ΠΏΠ΅ΡΡ Π½ΡΠΆΠ½ΠΎ ΡΠ°Π·Π΄Π΅Π»ΠΈΡΡΒ ΠΏΠΎΠ»ΡΡΠΈΠ²ΡΠ΅Π΅ΡΡ ΡΠΈΡΠ»ΠΎ Π½Π° Π΄Π»ΠΈΠ½Ρ ΠΎΠ΄Π½ΠΎΠ³ΠΎ ΠΏΠ»ΠΈΠ½ΡΡΡΠ°: 16,72 ΠΌ / 2,5 = Ρ ΠΎΠΊΡΡΠ³Π»Π΅Π½ΠΈΠ΅ΠΌ 7 ΡΡΡΠΊ.Β
ΠΠ»Ρ ΡΠ΅Π³ΠΎ Π½ΡΠΆΠ΅Π½ Π·Π°ΠΏΠ°Ρ?
ΠΠ΅ ΡΠ»Π΅Π΄ΡΠ΅Ρ ΠΏΠΎΠΊΡΠΏΠ°ΡΡ Π½Π°ΠΏΠΎΠ»ΡΠ½ΠΎΠ΅ ΠΏΠΎΠΊΡΡΡΠΈΠ΅ ΡΠΎΠ²Π½ΠΎ ΠΏΠΎ ΠΈΡΠΎΠ³ΠΎΠ²ΡΠΌ ΡΠ°ΡΡΠ΅ΡΠ°ΠΌ. ΠΠ΅Π»ΠΎ Π² ΡΠΎΠΌ, ΡΡΠΎ Π΄ΠΎΡΠΊΠΈ ΠΌΠΎΠ³ΡΡ Π±ΡΡΡ Π±ΡΠ°ΠΊΠΎΠ²Π°Π½Π½ΡΠΌΠΈ ΠΈΠ»ΠΈ ΠΆΠ΅ ΠΌΠΎΠ³ΡΡ ΠΏΠΎΠ²ΡΠ΅Π΄ΠΈΡΡ ΡΡΡΠΎΠΈΡΠ΅Π»ΠΈ. Π ΡΠ°ΠΊΠΎΠΌ ΡΠ»ΡΡΠ°Π΅Β ΠΏΡΠΈΠ΄Π΅ΡΡΡ Π΄ΠΎΠΊΡΠΏΠ°ΡΡ. ΠΡΠΎΠ±Π»Π΅ΠΌΠ° Π² ΡΠΎΠΌ, ΡΡΠΎ Π²ΠΎ-ΠΏΠ΅ΡΠ²ΡΡ , Π½ΡΠΆΠ½ΠΎΠΉ ΠΊΠΎΠ»Π»Π΅ΠΊΡΠΈΠΈ ΠΌΠΎΠΆΠ΅Ρ ΠΈ Π½Π΅ Π±ΡΡΡ, Π²ΠΎ-Π²ΡΠΎΡΡΡ ΡΠ»ΠΎΠΆΠ½ΠΎ ΠΏΠΎΠ΄ΠΎΠ±ΡΠ°ΡΡ ΠΏΠΎΡ ΠΎΠΆΠΈΠ΅ ΠΏΠ»Π°Π½ΠΊΠΈ, Π°Β ΡΠ°Π·Π½ΠΈΡΠ° Π² ΡΠ²Π΅ΡΠ΅ Π±ΡΠ΄Π΅Ρ Π²ΡΠ³Π»ΡΠ΄Π΅ΡΡ Π½Π΅ΠΊΡΠ°ΡΠΈΠ²ΠΎ. ΠΠΎΡΡΠΎΠΌΡ ΡΠ»Π΅Π΄ΡΠ΅ΡΒ Π±ΡΠ°ΡΡ ΠΌΠ°ΡΠ΅ΡΠΈΠ°Π» Ρ Π·Π°ΠΏΠ°ΡΠΎΠΌ, ΠΈ Π²ΠΎ ΠΌΠ½ΠΎΠ³ΠΎΠΌ ΠΊΠΎΠ»ΠΈΡΠ΅ΡΡΠ²ΠΎ Π·Π°Π²ΠΈΡΠΈΡ Π΅ΡΠ΅ ΠΈ ΠΎΡ ΡΠΈΠΏΠ° ΡΠΊΠ»Π°Π΄ΠΊΠΈ.Β
Π Π°ΡΡΠ΅Ρ Π½Π΅ΠΎΠ±Ρ ΠΎΠ΄ΠΈΠΌΠΎΠ³ΠΎ ΠΊΠΎΠ»ΠΈΡΠ΅ΡΡΠ²ΠΎ Π½Π°ΠΏΠΎΠ»ΡΠ½ΠΎΠ³ΠΎ ΠΏΠΎΠΊΡΡΡΠΈΡ ΠΊΠ°ΠΊ Π»Π°ΠΌΠΈΠ½Π°Ρ Π½Π΅ ΠΏΡΠ΅Π΄ΡΡΠ°Π²Π»ΡΠ΅Ρ Π½ΠΈΠΊΠ°ΠΊΠΎΠΉ ΡΠ»ΠΎΠΆΠ½ΠΎΡΡΠΈ, ΠΏΡΠΎΡΡΠΎ Π½ΡΠΆΠ½ΠΎ Π·Π½Π°ΡΡ Π½Π΅ΠΊΠΎΡΠΎΡΡΠ΅ ΠΏΡΠ°Π²ΠΈΠ»Π° ΠΌΠ°ΡΠ΅ΠΌΠ°ΡΠΈΠΊΠΈ ΠΈ Π³Π΅ΠΎΠΌΠ΅ΡΡΠΈΠΈ. ΠΡΠ°Π²ΠΈΠ»ΡΠ½ΠΎ ΠΏΠΎΠ΄ΡΡΠΈΡΠ°Π² ΠΊΠΎΠ»ΠΈΡΠ΅ΡΡΠ²ΠΎ ΠΌΠ°ΡΠ΅ΡΠΈΠ°Π»Π°, ΠΌΠΎΠΆΠ½ΠΎ ΡΡΠΊΠΎΠ½ΠΎΠΌΠΈΡΡ ΡΠ²ΠΎΠΈ ΡΠΈΠ»Ρ ΠΈ Π΄Π΅Π½ΡΠ³ΠΈ, ΠΊΠΎΡΠΎΡΡΠ΅ Π΄Π°Π»Π΅Π΅ ΠΌΠΎΠΆΠ½ΠΎ ΠΏΠΎΡΡΠ°ΡΠΈΡΡ Π½Π° ΠΏΠΎΠΊΡΠΏΠΊΡ ΠΏΠΎΠ΄Π»ΠΎΠΆΠΊΠΈ ΠΈΠ»ΠΈ ΡΠ°ΡΡ ΠΎΠ΄Π½ΡΡ ΠΌΠ°ΡΠ΅ΡΠΈΠ°Π»ΠΎΠ².
09.06.2019
ΡΠΏΠΎΡΠΎΠ±Ρ, ΠΏΡΠ°Π²ΠΈΠ»Π°, ΠΏΡΠΈΠΌΠ΅Ρ, ΡΠΊΠ»Π°Π΄ΠΊΠ°, Π²Π°ΠΆΠ½ΡΠ΅ Π½ΡΠ°Π½ΡΡ
ΠΠ°ΠΌΠΈΠ½Π°Ρ Π² ΠΊΠ°ΡΠ΅ΡΡΠ²Π΅ Π½Π°ΠΏΠΎΠ»ΡΠ½ΠΎΠ³ΠΎ ΠΏΠΎΠΊΡΡΡΠΈΡ ΡΡΠ°Π» ΠΎΡΠ΅Π½Ρ ΠΏΠΎΠΏΡΠ»ΡΡΠ½ΡΠΌ, ΠΏΠΎ ΡΡΠΎΠΉ ΠΏΡΠΈΡΠΈΠ½Π΅ Π²ΡΠ΅ ΡΠ°ΡΠ΅ Π»ΡΠ΄ΠΈ ΡΠΊΠ»Π°Π΄ΡΠ²Π°ΡΡ Π΅Π³ΠΎ ΡΠ°ΠΌΠΎΡΡΠΎΡΡΠ΅Π»ΡΠ½ΡΠΌ. ΠΠΈΡΠ΅Π³ΠΎ ΡΡΠΆΠ΅Π»ΠΎΠ³ΠΎ Π² ΡΡΠΎΠΌ Π½Π΅Ρ, ΠΎΠ΄Π½Π°ΠΊΠΎ Π½ΡΠΆΠ½ΠΎ Π·Π½Π°ΡΡ, ΠΊΠ°ΠΊ ΡΠ°ΡΡΡΠΈΡΠ°ΡΡ Π»Π°ΠΌΠΈΠ½Π°Ρ Π½Π° ΠΊΠΎΠΌΠ½Π°ΡΡ.
ΠΠΎΠ»Π»Π΅ΠΊΡΠΈΡ ΠΏΠ»Π°Π½ΠΎΠΊ, ΠΈΠ· ΠΊΠΎΡΠΎΡΡΡ ΡΠΊΠ»Π°Π΄ΡΠ²Π°Π΅ΡΡΡ ΠΏΠΎΠ», ΠΈΠΌΠ΅Π΅Ρ ΡΠ²ΠΎΠΉ ΡΠΎΠ±ΡΡΠ²Π΅Π½Π½ΡΠΉ ΡΠΈΡΡΠ½ΠΎΠΊ, ΠΏΠΎΡΡΠΎΠΌΡ ΠΏΡΠΈ ΠΏΠΎΠΊΡΠΏΠΊΠ΅ ΡΠ»Π΅Π΄ΡΠ΅Ρ Π±ΡΡΡ ΠΏΡΠ΅Π΄Π΅Π»ΡΠ½ΠΎ ΡΠΎΡΠ½ΡΠΌ, ΠΈ ΠΏΠΎΠΊΡΠΏΠ°ΡΡ ΡΠΎΠ²Π½ΠΎ ΡΡΠΎΠ»ΡΠΊΠΎ, ΡΠΊΠΎΠ»ΡΠΊΠΎ Π½ΡΠΆΠ½ΠΎ ΡΡΠΎΠ±Ρ Ρ Π²Π°ΡΠ°Π»ΠΎ Π² ΡΠΎΡΠ½ΠΎΡΡΠΈ Π½Π° ΠΊΠΎΠΌΠ½Π°ΡΡ.
Π‘ΠΏΠΎΡΠΎΠ±Ρ ΡΠ°ΡΡΠ΅ΡΠ°
ΠΡΡΡ Π½Π΅ΡΠΊΠΎΠ»ΡΠΊΠΎ ΡΠΏΠΎΡΠΎΠ±ΠΎΠ² ΠΏΡΠΎΠΈΠ·Π²Π΅ΡΡΠΈ ΠΏΠΎΠ΄ΡΡΠ΅Ρ Π»Π°ΠΌΠΈΠ½ΠΈΡΠΎΠ²Π°Π½Π½ΡΡ ΠΏΠΎΠ»ΠΎΠ². ΠΠΎΠ½Π΅ΡΠ½ΠΎ, Π΄Π°ΠΆΠ΅ ΠΎΠ½ΠΈ Π½Π΅ ΠΎΠ±Π΅ΡΠΏΠ΅ΡΠΈΠ²Π°ΡΡ ΠΏΠΎΠ»Π½ΠΎΠ΅ ΠΎΡΡΡΡΡΡΠ²ΠΈΠ΅ ΠΎΠ±ΡΠ΅Π·ΠΊΠΎΠ² ΠΈ ΠΎΡΡΠ°ΡΠΊΠΎΠ², ΠΎΠ΄Π½Π°ΠΊΠΎ ΡΡΠΎ Π»ΠΈΡΡ ΠΏΠΎΡΠΎΠΌΡ, ΡΡΠΎ ΠΏΡΠΈ ΡΠΊΠ»Π°Π΄ΠΊΠ΅ Π΄ΠΎΡΠΊΠΈ ΠΏΡΠΈΡ ΠΎΠ΄ΠΈΡΡΡ ΠΏΠΎΠ΄ΡΠ΅Π·Π°ΡΡ. ΠΠ»Ρ ΡΠΎΠ³ΠΎ ΡΡΠΎΠ±Ρ ΠΏΡΠΎΠΈΠ·Π²Π΅ΡΡΠΈ ΠΏΡΠ°Π²ΠΈΠ»ΡΠ½ΡΠ΅ ΠΏΠΎΠ΄ΡΡΠ΅ΡΡ, Π½Π΅ΠΎΠ±Ρ ΠΎΠ΄ΠΈΠΌΠΎ ΡΠΎΡΠ½ΠΎ Π·Π½Π°ΡΡ Π³Π°Π±Π°ΡΠΈΡΡ ΠΏΠΎΠΌΠ΅ΡΠ΅Π½ΠΈΡ.
ΠΡΠΎΡΠ΅ Π²ΡΠ΅Π³ΠΎ Π²ΡΡΠΈΡΠ»ΠΈΡΡ ΠΏΠ»ΠΎΡΠ°Π΄Ρ ΠΏΡΡΠΌΠΎΡΠ³ΠΎΠ»ΡΠ½ΠΎΠΉ ΠΊΠΎΠΌΠ½Π°ΡΡ, Π·Π΄Π΅ΡΡ Ρ Π²Π°ΡΠΈΡ ΠΏΡΠΎΡΡΠΎ ΠΏΠΎΠΌΠ½ΠΎΠΆΠΈΡΡ ΡΠΈΡΠΈΠ½Ρ Π½Π° Π΄Π»ΠΈΠ½Ρ. ΠΠΎΠ²Π΅ΡΡ Π½ΠΎΡΡΡ ΠΏΠΎΠ»Π° ΠΊΠΎΠΌΠ½Π°ΡΡ Π½Π΅ΠΏΡΠ°Π²ΠΈΠ»ΡΠ½ΠΎΠΉ ΡΠΎΡΠΌΡ Π΄Π΅Π»ΠΈΡΡΡ Π½Π° ΠΏΡΡΠΌΠΎΡΠ³ΠΎΠ»ΡΠ½ΠΈΠΊΠΈ, ΠΏΠΎΡΠ»Π΅ ΡΠ΅Π³ΠΎ ΠΏΠΎΠ΄ΡΡΠΈΡΡΠ²Π°Π΅ΡΡΡ ΠΎΠ±ΡΠ°Ρ ΠΏΠ»ΠΎΡΠ°Π΄Ρ.
Π§ΡΠΎΠ±Ρ Π²ΡΡΠΈΡΠ»ΠΈΡΡ, ΡΠΊΠΎΠ»ΡΠΊΠΎ ΠΏΠ°Π½Π΅Π»Π΅ΠΉ Π»Π°ΠΌΠΈΠ½Π°ΡΠ° Π½Π΅ΠΎΠ±Ρ ΠΎΠ΄ΠΈΠΌΠΎ Π΄Π»Ρ ΡΠΊΠ»Π°Π΄ΠΊΠΈ, ΠΏΠ»ΠΎΡΠ°Π΄Ρ ΠΏΠΎΠΌΠ΅ΡΠ΅Π½ΠΈΡ Π΄Π΅Π»ΠΈΡΡΡ Π½Π° ΠΏΠ»ΠΎΡΠ°Π΄Ρ ΡΠ»Π΅ΠΌΠ΅Π½ΡΠ° Π½Π°ΠΏΠΎΠ»ΡΠ½ΠΎΠ³ΠΎ ΠΏΠΎΠΊΡΡΡΠΈΡ. ΠΠ°ΠΉΠ΄Ρ Π² ΠΌΠ°Π³Π°Π·ΠΈΠ½ ΠΌΠΎΠΆΠ½ΠΎ ΠΎΠ±Π½Π°ΡΡΠΆΠΈΡΡ, ΡΡΠΎ ΠΏΡΠΎΠΈΠ·Π²ΠΎΠ΄ΠΈΡΠ΅Π»ΠΈ ΠΏΠΎΡΡΠ°Π²Π»ΡΡΡ Π»Π°ΠΌΠΈΠ½Π°Ρ Π² ΡΠΏΠ°ΠΊΠΎΠ²ΠΊΠ°Ρ ΠΏΠΎ Π½Π΅ΡΠΊΠΎΠ»ΡΠΊΠΎ ΠΏΠ°Π½Π΅Π»Π΅ΠΉ, ΠΏΠΎΡΡΠΎΠΌΡ ΠΈΠ½ΠΎΠ³Π΄Π° Π±Π΅Π· Π»ΠΈΡΠ½ΠΈΡ Π΄Π΅ΡΠ°Π»Π΅ΠΉ ΠΎΠ±ΠΎΠΉΡΠΈΡΡ Π½Π΅ ΡΠ΄Π°ΡΡΡΡ. ΠΡΠΎΡΠΎΠΉ ΡΠΏΠΎΡΠΎΠ± β ΠΏΡΠΎΡΡΠΎ Π²ΡΠ»ΠΎΠΆΠΈΡΡ ΠΏΠ°Π½Π΅Π»ΠΈ ΠΏΠΎ ΠΏΠΎΠ²Π΅ΡΡ Π½ΠΎΡΡΠΈ ΠΏΠΎΠ»Π°, ΠΎΠ΄Π½Π°ΠΊΠΎ ΡΡΠΎ Π²ΠΎΠ·ΠΌΠΎΠΆΠ½ΠΎ ΡΠΆΠ΅ ΠΏΠΎΡΠ»Π΅ ΠΏΠΎΠΊΡΠΏΠΊΠΈ Π½Π°ΠΏΠΎΠ»ΡΠ½ΠΎΠ³ΠΎ ΠΏΠΎΠΊΡΡΡΠΈΡ. ΠΠΏΡΠ΅Π΄Π΅Π»Π΅Π½Π½ΡΠ΅ ΡΠ»ΠΎΠΆΠ½ΠΎΡΡΠΈ ΠΌΠΎΠ³ΡΡ Π²ΠΎΠ·Π½ΠΈΠΊΠ½ΡΡΡ, Π΅ΡΠ»ΠΈ Π½Π΅ΠΎΠ±Ρ ΠΎΠ΄ΠΈΠΌΠΎ ΡΠ°ΡΡΡΠΈΡΠ°ΡΡ ΠΏΠΎΠΊΡΡΡΠΈΠ΅ ΠΏΠΎΠ΄ ΠΊΠΎΠΌΠ½Π°ΡΡ Ρ Π²ΡΡΡΡΠΏΠ°ΠΌΠΈ. ΠΡ Π³Π»ΡΠ±ΠΈΠ½Ρ Π½Π΅ΠΎΠ±Ρ ΠΎΠ΄ΠΈΠΌΠΎ ΠΈΠ·ΠΌΠ΅ΡΠΈΡΡ, ΠΈ Π²ΡΡΠ΅ΡΡΡ Π΅Π΅ ΠΏΡΠΈ ΡΠ°ΡΡΠ΅ΡΠ°Ρ .
ΠΡΠ°Π²ΠΈΠ»Π° ΡΠ°ΡΡΠ΅ΡΠ°
ΠΡΠΈ ΡΠ°ΡΡΠ΅ΡΠ΅ Π½ΡΠΆΠ½ΠΎ ΡΠ»Π΅Π΄ΠΎΠ²Π°ΡΡ ΠΎΠΏΡΠ΅Π΄Π΅Π»Π΅Π½Π½ΡΠΌ ΠΏΡΠ°Π²ΠΈΠ»Π°ΠΌ, ΡΡΠΎΠ±Ρ ΠΈΠ·Π±Π΅ΠΆΠ°ΡΡ ΠΎΡΠΈΠ±ΠΎΠΊ, ΡΠΏΠΎΡΠΎΠ±Π½ΡΡ ΡΠΎΠ·Π΄Π°ΡΡ ΠΌΠ½ΠΎΠΆΠ΅ΡΡΠ²ΠΎ Π½Π΅ΡΠ΄ΠΎΠ±ΡΡΠ²:
Π Π°ΡΡΠ΅Ρ Π΄ΠΎΠ»ΠΆΠ΅Π½ ΡΡΠΈΡΡΠ²Π°ΡΡ ΠΊΠΎΠ»ΠΈΡΠ΅ΡΡΠ²ΠΎ ΠΈΡΠΏΠΎΠ»ΡΠ·ΡΠ΅ΠΌΠΎΠ³ΠΎ ΠΌΠ°ΡΠ΅ΡΠΈΠ°Π»Π°, Π΅ΡΠ»ΠΈ ΠΎΠ½Π° ΠΏΡΡΠΌΠ°Ρ β Π½Π΅ΠΎΠ±Ρ ΠΎΠ΄ΠΈΠΌΠΎ Π΄ΠΎΠ±Π°Π²ΠΈΡΡ 5% ΠΊ ΡΠ°ΡΡΡΠΈΡΠ°Π½Π½ΠΎΠΌΡ ΠΊΠΎΠ»ΠΈΡΠ΅ΡΡΠ²Ρ. ΠΡΠ»ΠΈ ΠΆΠ΅ ΡΠΊΠ»Π°Π΄ΠΊΠ° Π΄ΠΈΠ°Π³ΠΎΠ½Π°Π»ΡΠ½Π°Ρ, Π½ΡΠΆΠ½ΠΎ Π·Π°ΠΊΡΠΏΠΈΡΡ Π½Π° 15% Π±ΠΎΠ»ΡΡΠ΅ ΡΠ»Π΅ΠΌΠ΅Π½ΡΠΎΠ² Π½Π°ΠΏΠΎΠ»ΡΠ½ΠΎΠ³ΠΎ ΠΏΠΎΠΊΡΡΡΠΈΡ ΠΏΠΎ ΠΎΡΠ½ΠΎΡΠ΅Π½ΠΈΡ ΠΊ ΡΠ°ΡΡΡΠΈΡΠ°Π½Π½ΠΎΠΉ ΠΏΠ»ΠΎΡΠ°Π΄ΠΈ ΠΏΠΎΠ²Π΅ΡΡ Π½ΠΎΡΡΠΈ ΠΏΠΎΠ»Π°.
ΠΠ·Π±ΡΡΠΎΡΠ½ΡΠΉ ΠΌΠ°ΡΠ΅ΡΠΈΠ°Π» Π±ΡΠ΄Π΅Ρ ΡΡΡΠ°ΡΠ΅Π½ Π² ΡΠ΅Π·ΡΠ»ΡΡΠ°ΡΠ΅ ΠΎΠ±ΡΠ΅Π·ΠΊΠΈ Π΄ΠΎΡΠΎΠΊ Π² ΠΏΡΠΎΡΠ΅ΡΡΠ΅ ΠΌΠΎΠ½ΡΠ°ΠΆΠ½ΡΡ ΡΠ°Π±ΠΎΡ.
ΠΠ±ΡΠ°Ρ ΠΏΠ»ΠΎΡΠ°Π΄Ρ Π²ΡΡΠΈΡΠ»ΡΠ΅ΡΡΡ ΡΠ»Π΅ΠΌΠ΅Π½ΡΠ°ΡΠ½ΠΎ, ΠΈ ΠΏΡΠΎΠΈΠ·Π²ΠΎΠ΄ΠΈΡΠ΅Π»ΠΈ Π½Π° ΠΊΠ°ΠΆΠ΄ΠΎΠΉ ΠΏΠ°ΡΠΊΠ΅ ΠΏΠΈΡΡΡ, ΠΊΠ°ΠΊΡΡ ΠΏΠ»ΠΎΡΠ°Π΄Ρ ΠΈΡ
ΠΏΡΠΎΠ΄ΡΠΊΡΠΈΡ ΡΠΌΠΎΠΆΠ΅Ρ ΠΏΠΎΠΊΡΡΡΡ.
ΠΠΎΡΡΡΡΠ½ΠΎ Π»Π°ΠΌΠ΅Π»ΠΈ ΠΏΠΎΠΊΡΠΏΠ°ΡΡ Π½Π΅ ΡΡΠΎΠΈΡ, ΡΠ°ΠΊ ΠΊΠ°ΠΊ ΠΏΡΠΈΠ΄Π΅ΡΡΡ ΠΏΠΎΡΡΠ°ΡΠΈΡΡ ΠΌΠ½ΠΎΠ³ΠΎ Π²ΡΠ΅ΠΌΠ΅Π½ΠΈ Π½Π° ΡΠ°ΡΡΠ΅Ρ ΠΏΠ»ΠΎΡΠ°Π΄ΠΈ, Π½Π° ΠΊΠΎΡΠΎΡΡΡ ΠΎΠ½ΠΈ ΡΠ°ΡΡΡΠΈΡΠ°Π½Ρ, ΠΏΠΎΠ΄Π΅Π»ΠΈΠ² ΠΏΠ»ΠΎΡΠ°Π΄Ρ ΠΏΠΎΠ»Π° Π½Π° ΡΠΊΠ°Π·Π°Π½Π½ΡΡ Π½Π° ΠΏΠ°ΡΠΊΠ΅ Π²Π΅Π»ΠΈΡΠΈΠ½Ρ
ΠΠ΅Π»ΡΠ·Ρ Π·Π°Π±ΡΠ²Π°ΡΡ, ΡΡΠΎ ΡΠ°ΡΡΡ ΠΌΠ°ΡΠ΅ΡΠΈΠ°Π»Π° ΡΠΉΠ΄Π΅Ρ Π½Π° ΡΡΠ΅Π·ΠΊΡ.
ΠΡΠΈΠΌΠ΅Ρ ΡΠ°ΡΡΠ΅ΡΠ° ΠΏΠΎ ΠΏΠ»ΠΎΡΠ°Π΄ΠΈ
ΠΠΎΠ½ΡΡΡ Π»ΡΡΡΠ΅, ΠΊΠ°ΠΊ ΡΠ°ΡΡΡΠΈΡΠ°ΡΡ Π»Π°ΠΌΠΈΠ½Π°Ρ Π½Π° ΠΊΠΎΠΌΠ½Π°ΡΡ, ΠΏΠΎΠΌΠΎΠΆΠ΅Ρ ΠΏΡΠΎΡΡΠΎΠΉ ΠΏΡΠΈΠΌΠ΅Ρ ΡΠ°ΡΡΠ΅ΡΠ°. ΠΡΠΎΠ²Π΅Π΄Π΅ΠΌ Π΅Π³ΠΎ ΠΏΠΎ ΡΠ»Π΅Π΄ΡΡΡΠ΅ΠΌΡ Π°Π»Π³ΠΎΡΠΈΡΠΌΡ:
ΠΠ°Ρ ΠΎΠ΄ΠΈΠΌ ΠΏΠ»ΠΎΡΠ°Π΄Ρ ΠΏΠΎΠ»Π°, Π½Π°ΠΏΡΠΈΠΌΠ΅Ρ: 5,3*3,8 = 20,14 ΠΌ2;
Π ΠΏΠΎΠ»ΡΡΠ΅Π½Π½ΠΎΠΌΡ ΡΠ΅Π·ΡΠ»ΡΡΠ°ΡΡ ΠΏΡΠΈΠ±Π°Π²Π»ΡΠ΅ΠΌ 5% ΠΈΠ»ΠΈ 15% — 20,14 + 1,007 = 21,147 ΠΌ2 Π΄Π»Ρ ΠΏΡΡΠΌΠΎΠΉ ΡΠΊΠ»Π°Π΄ΠΊΠΈ, ΠΈ 20,14 + 3,021 = 23,161 ΠΌ2 Π΄Π»Ρ Π΄ΠΈΠ°Π³ΠΎΠ½Π°Π»ΡΠ½ΠΎΠΉ ΡΠΊΠ»Π°Π΄ΠΊΠΈ
Π‘ΡΠΈΡΠ°Π΅ΠΌ, ΡΠΊΠΎΠ»ΡΠΊΠΎ Π½ΡΠΆΠ½ΠΎ ΠΏΠ°ΡΠ΅ΠΊ Π»Π°ΠΌΠ΅Π»Π΅ΠΉ.
ΠΠ°ΠΏΡΠΈΠΌΠ΅Ρ, Π² ΠΎΠ΄Π½ΠΎΠΉ ΠΏΠ°ΡΠΊΠ΅ ΠΏΠ°Π½Π΅Π»ΠΈ ΡΠ°ΡΡΡΠΈΡΠ°Π½Ρ Π½Π° 2,15 ΠΌ2, ΡΠ°Π·Π΄Π΅Π»ΠΈΠ² ΠΏΠΎΡΡΠΈΡΠ°Π½Π½ΡΡ ΠΏΠ»ΠΎΡΠ°Π΄Ρ Π½Π° Π΄Π°Π½Π½ΡΠΉ ΠΏΠΎΠΊΠ°Π·Π°ΡΠ΅Π»Ρ, ΠΌΡ ΠΏΠΎΠ»ΡΡΠ°Π΅ΠΌ ΡΠΈΡΠ»ΠΎ Π½Π΅ΠΎΠ±Ρ ΠΎΠ΄ΠΈΠΌΡΡ ΠΊ ΠΏΠΎΠΊΡΠΏΠΊΠ΅ ΠΏΠ°ΡΠ΅ΠΊ: 21,147/2,15 = 9,8358 Π΄Π»Ρ ΠΏΡΡΠΌΠΎΠΉ ΡΠΊΠ»Π°Π΄ΠΊΠΈ, ΠΈ 23,35/2,15 = 10,86 Π΄Π»Ρ Π΄ΠΈΠ°Π³ΠΎΠ½Π°Π»ΡΠ½ΠΎΠΉ ΡΠΊΠ»Π°Π΄ΠΊΠΈ, ΡΠΎ Π΅ΡΡΡ, Π½ΡΠΆΠ½ΠΎ ΠΊΡΠΏΠΈΡΡ 10 ΠΈ 11 ΠΏΠ°ΡΠ΅ΠΊ ΡΠΎΠΎΡΠ²Π΅ΡΡΡΠ²Π΅Π½Π½ΠΎ.
Π‘ΠΏΠΎΡΠΎΠ± ΡΠΊΠ»Π°Π΄ΠΊΠΈ
ΠΡΠΈ ΡΠ°ΡΡΠ΅ΡΠ°Ρ Π½ΡΠΆΠ½ΠΎ Π²ΡΡΠΈΡΠ»ΠΈΡΡ, ΡΠΊΠΎΠ»ΡΠΊΠΎ ΡΡΠ΄ΠΎΠ² Π»Π°ΠΌΠ΅Π»Π΅ΠΉ Π±ΡΠ΄Π΅Ρ ΡΡΡΠ°Π½ΠΎΠ²Π»Π΅Π½ΠΎ, ΠΈ ΠΎΠΏΡΠ΅Π΄Π΅Π»ΠΈΡΡ ΡΠΈΡΠΈΠ½Ρ ΡΠΈΠ½Π°Π»ΡΠ½ΠΎΠ³ΠΎ ΡΡΠ΄Π°. ΠΠΎΠ³Π΄Π° ΡΠΈΡΠΈΠ½Π° Π½Π° 25-30% ΠΌΠ΅Π½ΡΡΠ΅ ΠΎΡ ΠΏΠΎΠ»Π½ΠΎΠΉ, ΡΠ»Π΅ΠΌΠ΅Π½ΡΡ Π² ΡΡΠ°ΡΡΠΎΠ²ΠΎΠΌ ΠΈ ΠΏΠΎΡΠ»Π΅Π΄Π½Π΅ΠΌ ΡΡΠ΄Ρ Π½ΡΠΆΠ½ΠΎ ΠΎΠ±ΡΠ΅Π·Π°ΡΡ, ΡΠ΄Π΅Π»Π°Π² ΠΈΡ ΠΎΠ΄ΠΈΠ½Π°ΠΊΠΎΠ²ΡΠΌΠΈ. Π’Π°ΠΊΠΆΠ΅ Π½ΡΠΆΠ½ΠΎ ΡΡΠ΅ΡΡΡ Π·Π°Π·ΠΎΡ Π² ΡΠ°Π·ΠΌΠ΅ΡΠ΅ ΡΠ°Π½ΡΠΈΠΌΠ΅ΡΡΠ°, ΠΊΠΎΡΠΎΡΡΠΉ Π½ΡΠΆΠ½ΠΎ ΠΎΡΡΠ°Π²ΠΈΡΡ Π²ΠΎΠ·Π»Π΅ ΡΡΠ΅Π½, Π½Π° Π²Π½Π΅ΡΠ½ΠΈΠΉ Π²ΠΈΠ΄ ΠΎΠ½ Π½Π΅ ΠΏΠΎΠ²Π»ΠΈΡΠ΅Ρ, ΡΠ°ΠΊ ΠΊΠ°ΠΊ Π΅Π³ΠΎ Π·Π°ΠΊΡΠΎΠ΅Ρ ΠΏΠ»ΠΈΠ½ΡΡΡ.
ΠΠΎΠ½ΡΠ°ΠΆΠ½ΡΠ΅ ΡΠ°Π±ΠΎΡΡ Π½ΡΠΆΠ½ΠΎ Π½Π°ΡΠΈΠ½Π°ΡΡ Ρ Π»Π΅Π²ΠΎΠ³ΠΎ Π΄Π°Π»ΡΠ½Π΅Π³ΠΎ ΡΠ³Π»Π°, Π²ΠΎΠ·Π»Π΅ ΡΡΠ΅Π½Ρ Π½Π΅ΠΎΠ±Ρ ΠΎΠ΄ΠΈΠΌΠΎ ΠΈΡΠΏΠΎΠ»ΡΠ·ΠΎΠ²Π°ΡΡ ΡΠ°ΡΠΏΠΎΡΠ½ΡΠ΅ ΠΊΠ»ΠΈΠ½ΡΡ, ΠΎΠ½ΠΈ ΠΎΠ±Π΅ΡΠΏΠ΅ΡΠ°Ρ ΡΠΎΡ ΡΠ°Π½Π΅Π½ΠΈΠ΅ Π·Π°Π·ΠΎΡΠ°. ΠΠ»Ρ Π½Π°ΡΠ°Π»Π° ΡΠ°Π±ΠΎΡΡ ΡΠ»Π΅Π΄ΡΠ΅Ρ ΡΡΡΠ°Π½ΠΎΠ²ΠΈΡΡ ΡΠ°ΡΡΡ ΠΏΠΎΠ΄Π»ΠΎΠΆΠΊΠΈ, ΠΏΠΎΠ»ΠΎΠΆΠΈΡΡ ΠΏΠ΅ΡΠ²ΡΡ ΠΏΠ°Π½Π΅Π»Ρ, Π° Π·Π°ΡΠ΅ΠΌ Ρ ΡΠ·ΠΊΠΎΠΉ ΡΡΠΎΡΠΎΠ½Ρ, ΠΏΡΠΎΠ΄ΠΎΠ»ΠΆΠΈΠ² Π½Π°Π±ΠΈΡΠ°ΡΡ ΠΏΠ΅ΡΠ²ΡΠΉ ΡΡΠ΄, ΠΏΡΠΈΡΡΠ°Π²ΠΈΡΡ ΡΠ»Π΅Π΄ΡΡΡΠΈΠΉ ΡΠ»Π΅ΠΌΠ΅Π½Ρ ΠΏΠΎΠ΄ ΡΠ³Π»ΠΎΠΌ 30-40 Π‘ΠΎ, ΠΎΠΏΡΡΡΠΈΠ² Π΅Π³ΠΎ Π΄ΠΎ ΠΏΠΎΠ»Π°, ΠΈ Π·Π°ΡΠ΅Π»ΠΊΠ½ΡΠ². ΠΠ΅ΡΠ²ΡΠΉ ΡΡΠ΄ Π½Π°Π±ΠΈΡΠ°Π΅ΡΡΡ ΡΠ°ΠΊΠΈΠΌ ΡΠΏΠΎΡΠΎΠ±ΠΎΠΌ.
ΠΠΎΡΠ»Π΅Π΄ΡΡΡΠΈΠ΅ ΡΠ»Π΅Π΄ΡΠ΅Ρ ΡΡΡΠ°Π½Π°Π²Π»ΠΈΠ²Π°ΡΡ ΡΠ»ΠΎΠ²Π½ΠΎ ΠΊΠΈΡΠΏΠΈΡΠ½ΡΡ ΠΊΠ»Π°Π΄ΠΊΡ, ΡΠΌΠ΅ΡΠ°Ρ ΠΈΡ
ΠΏΠΎ ΠΎΡΠ½ΠΎΡΠ΅Π½ΠΈΡ Π΄ΡΡΠ³ ΠΊ Π΄ΡΡΠ³Ρ. Π ΠΊΠΎΠ½ΡΠ΅ ΡΡΠ΄Π° ΠΎΡΡΠ΅Π·Π°Π΅ΡΡΡ ΡΠ°ΡΡΡ Π»Π°ΠΌΠ΅Π»ΠΈ ΠΏΡΠΈ Π½Π΅ΠΎΠ±Ρ
ΠΎΠ΄ΠΈΠΌΠΎΡΡΠΈ, ΠΎΡΡΠ΅Π·Π°Π½Π½ΡΠΉ ΡΠ»Π΅ΠΌΠ΅Π½Ρ ΠΈΡΠΏΠΎΠ»ΡΠ·ΡΠ΅ΡΡΡ Π΄Π»Ρ ΡΠΊΠ»Π°Π΄ΠΊΠΈ Π² Π΄ΡΡΠ³ΠΎΠΌ ΠΊΠΎΠ½ΡΠ΅ ΡΡΠ΄Π°, ΠΏΠΎ ΡΠ°Π·ΠΌΠ΅ΡΡ ΠΎΠ½ Π½Π΅ Π΄ΠΎΠ»ΠΆΠ΅Π½ Π±ΡΡΡ ΠΌΠ΅Π½ΡΡΠ΅ ΡΠ΅ΠΌ 30 ΡΠΌ.
ΠΡΠΎΡΠΎΠΉ ΡΡΠ΄ Π½Π΅ΠΎΠ±Ρ
ΠΎΠ΄ΠΈΠΌΠΎ ΡΠ½Π°ΡΠ°Π»Π° ΡΠΎΡΡΡΠΊΠΎΠ²Π°ΡΡ Π΄ΡΡΠ³ Ρ Π΄ΡΡΠ³ΠΎΠΌ, Π° Π·Π°ΡΠ΅ΠΌ ΡΠ΅Π»ΠΈΠΊΠΎΠΌ Π·Π°ΠΊΡΠ΅ΠΏΠΈΡΡ Π½Π° ΠΏΠ΅ΡΠ²ΠΎΠΌ ΡΡΠ΄Ρ.
ΠΠ»ΡΡΠ΅ΡΠ½Π°ΡΠΈΠ²Π½ΡΠΉ Π²Π°ΡΠΈΠ°Π½Ρ β Π²ΡΡΠ°Π²ΠΈΡΡ ΡΠ»Π΅ΠΌΠ΅Π½Ρ Π²ΡΠΎΡΠΎΠ³ΠΎ ΡΡΠ΄Π°, ΠΎΠΏΡΡΡΠΈΡΡ Π΄ΠΎ Π·Π°ΡΠ΅Π»ΠΊΠΈΠ²Π°Π½ΠΈΡ, Π° ΠΏΠΎΡΠΎΠΌ ΠΏΠΎΠ΄ΠΎΠ³Π½Π°ΡΡ ΠΊ ΠΏΠ΅ΡΠ²ΠΎΠΉ ΠΏΡΠΈ ΠΏΠΎΠΌΠΎΡΠΈ ΠΌΠΎΠ»ΠΎΡΠΊΠ°.
ΠΠΎΠ½ΡΠ°ΠΆ Π»Π°ΠΌΠ΅Π»Π΅ΠΉ Ρ Π·Π°ΠΌΠΊΠ°ΠΌΠΈ ΡΠΈΠΏΠ°Β Β«Lock Β» ΠΏΡΠΎΠΈΠ·Π²ΠΎΠ΄ΠΈΡΡΡ ΠΏΡΠΈΠΌΠ΅ΡΠ½ΠΎ ΡΠ΅ΠΌ ΠΆΠ΅ ΡΠΏΠΎΡΠΎΠ±ΠΎΠΌ, ΡΡΠΎ ΠΈ ΠΌΠΎΠ½ΡΠ°ΠΆ ΡΠ»Π΅ΠΌΠ΅Π½ΡΠΎΠ² Ρ Π·Π°ΠΌΠΊΠ°ΠΌΠΈ Β« Click Β» (ΠΎ ΠΏΠΎΡΠ»Π΅Π΄Π½ΠΈΡ ΠΈ ΠΌΡ ΠΈ Π³ΠΎΠ²ΠΎΡΠΈΠ»ΠΈ Π²ΡΡΠ΅). ΠΠ»Π΅ΠΌΠ΅Π½ΡΡ ΡΡΠ°ΡΡΠΎΠ²ΠΎΠ³ΠΎ ΠΈ ΠΏΠΎΡΠ»Π΅Π΄Π½Π΅Π³ΠΎ ΡΡΠ΄Π° Π΄ΠΎΠ»ΠΆΠ½Ρ Π±ΡΡΡ ΡΠ°ΡΠΏΠΈΠ»Π΅Π½Ρ Π½Π°Π΄Π²ΠΎΠ΅ Π²Π΄ΠΎΠ»Ρ ΡΠ°ΠΊ, ΡΡΠΎΠ±Ρ ΠΎΠ½ΠΈ Π½Π΅ ΠΎΡΠ»ΠΈΡΠ°Π»ΠΈΡΡ ΠΏΠΎ ΡΠ°Π·ΠΌΠ΅ΡΠ°ΠΌ. ΠΠ΅ΠΎΠ±ΡΠ΅Π·Π°Π½Π½ΠΎΠΉ ΡΠ°ΡΡΡΡ Π²ΠΎ Π²Π½ΡΡΡΡ ΠΊΠΎΠΌΠ½Π°ΡΡ ΡΠΊΠ»Π°Π΄ΡΠ²Π°ΡΡΡΡ ΠΏΠ°Π½Π΅Π»ΠΈ ΠΏΠ΅ΡΠ²ΠΎΠ³ΠΎ ΡΡΠ΄Π° ΠΏΠΎΠ²Π΅ΡΡ ΠΏΠΎΠ΄Π»ΠΎΠΆΠΊΠΈ.
ΠΠ΅ΡΠ²ΡΠΉ ΡΡΠ΄ Π½Π°Π±ΠΈΡΠ°ΡΡ, ΡΠ»ΠΎΠΆΠΈΠ² ΠΏΠ΅ΡΠ²ΡΡ ΠΏΠ°Π½Π΅Π»Ρ, ΠΏΡΠΈΠ»ΠΎΠΆΠΈΠ² ΡΠ»Π΅Π΄ΡΡΡΡΡ ΠΊ ΡΠ·ΠΊΠΎΠΉ ΡΠ°ΡΡΠΈ Π² Π³ΠΎΡΠΈΠ·ΠΎΠ½ΡΠ°Π»ΡΠ½ΠΎΠΌ ΠΏΠΎΠ»ΠΎΠΆΠ΅Π½ΠΈΠΈ, Π²ΡΡΠ°Π²ΠΈΡΡ Π²ΡΡΡΡΠΏΠΎΠΌ Π² ΠΏΠ°Π· ΠΏΠ΅ΡΠ²ΠΎΠΉ Π»Π°ΠΌΠ΅Π»ΠΈ, ΠΈ ΠΏΡΠΈΠ±ΠΈΡΡ ΠΏΡΠΈ ΠΏΠΎΠΌΠΎΡΠΈ ΠΌΠΎΠ»ΠΎΡΠΊΠ° (ΡΠ΅Π·ΠΈΠ½ΠΎΠ²ΠΎΠ³ΠΎ, ΡΡΠΎΠ±Ρ Π½Π΅ ΠΏΠΎΠ²ΡΠ΅Π΄ΠΈΡΡ) Π΄ΠΎ ΠΈΡΡΠ΅Π·Π½ΠΎΠ²Π΅Π½ΠΈΡ Π·Π°Π·ΠΎΡΠ°. ΠΡΠΎΡΠΎΠΉ ΡΡΠ΄ ΡΠΊΠ»Π°Π΄ΡΠ²Π°Π΅ΡΡΡ ΡΠ°ΠΊΠΈΠΌ ΠΆΠ΅ ΠΎΠ±ΡΠ°Π·ΠΎΠΌ, ΠΊΠ°ΠΊ ΠΏΠ΅ΡΠ²ΡΠΉ β ΠΏΠΎΡΡΡΡΠ½ΠΎ. Π§ΡΠΎ ΠΊΠ°ΡΠ°Π΅ΡΡΡ ΠΎΠ±ΡΠ΅Π³ΠΎ ΡΠ°ΡΠΏΠΎΠ»ΠΎΠΆΠ΅Π½ΠΈΡ ΡΠ»Π΅ΠΌΠ΅Π½ΡΠΎΠ² Π½Π°ΠΏΠΎΠ»ΡΠ½ΠΎΠ³ΠΎ ΠΏΠΎΠΊΡΡΡΠΈΡ ΠΏΠΎ ΠΎΡΠ½ΠΎΡΠ΅Π½ΠΈΡ Π΄ΡΡΠ³ ΠΊ Π΄ΡΡΠ³Ρ ΠΎΡΡΠ°Π΅ΡΡΡ ΡΠ°ΠΊΠΈΠΌ ΠΆΠ΅, ΠΊΠ°ΠΊ ΠΏΡΠΈ ΠΌΠΎΠ½ΡΠ°ΠΆΠ΅ click -ΠΏΠ°Π½Π΅Π»Π΅ΠΉ.
ΠΡΡΠ΅ ΡΠΏΠΎΠΌΠΈΠ½Π°Π»Π°ΡΡ Π΄ΠΈΠ°Π³ΠΎΠ½Π°Π»ΡΠ½Π°Ρ ΡΠΊΠ»Π°Π΄ΠΊΠ° Π»Π°ΠΌΠΈΠ½Π°ΡΠ°, ΠΎΠ΄Π½Π°ΠΊΠΎ ΡΡΠ° ΡΠ°Π±ΠΎΡΠ° ΡΡΠ΅Π·Π²ΡΡΠ°ΠΉΠ½ΠΎ ΡΠ»ΠΎΠΆΠ½Π°Ρ, ΠΈ Π±Π΅Π· ΡΠΏΠ΅ΡΠΈΠ°Π»ΡΠ½ΠΎΠΉ ΠΏΠΎΠ΄Π³ΠΎΡΠΎΠ²ΠΊΠΈ ΠΊ Π½Π΅ΠΉ Π»ΡΡΡΠ΅ Π½Π΅ ΠΏΡΠΈΡΡΡΠΏΠ°ΡΡ. Π§ΡΠΎΠ±Ρ Π²ΡΠΏΠΎΠ»Π½ΠΈΡΡ Π΄ΠΈΠ°Π³ΠΎΠ½Π°Π»ΡΠ½ΡΡ ΡΠΊΠ»Π°Π΄ΠΊΡ Π½Π°Π±ΠΎΡΠ½ΠΎΠ³ΠΎ ΠΏΠΎΠ»Π° ΠΈΠ· ΠΏΠ°Π½Π΅Π»Π΅ΠΉ, Π»ΡΡΡΠ΅ ΠΏΡΠΈΠ³Π»Π°ΡΠΈΡΡ Π±ΡΠΈΠ³Π°Π΄Ρ ΡΠΏΠ΅ΡΠΈΠ°Π»ΠΈΡΡΠΎΠ².
ΠΠ°ΠΆΠ½ΡΠ΅ Π½ΡΠ°Π½ΡΡ
Π Π΅Π΄ΠΊΠΎ ΠΌΠΎΠΆΠ½ΠΎ Π½Π°ΠΉΡΠΈ ΠΏΠΎΠΌΠ΅ΡΠ΅Π½ΠΈΠ΅ Ρ ΠΈΠ΄Π΅Π°Π»ΡΠ½ΠΎ ΡΠΎΠ²Π½ΡΠΌ ΠΏΠΎΠ»ΠΎΠΌ, Π±Π΅Π· ΡΡΡΠ±, Π²ΡΡΡΡΠΏΠΎΠ², ΠΈ ΠΏΡΠΎΡΠΈΡ ΠΊΠΎΠ½ΡΡΡΡΠΊΡΠΈΠΉ, ΠΏΠΎΡΡΠΎΠΌΡ ΠΏΡΠΈ ΡΠΊΠ»Π°Π΄ΠΊΠ΅ ΠΌΠΎΠ³ΡΡ ΠΏΠΎΡΠ²ΠΈΡΡΡΡ ΠΎΠΏΡΠ΅Π΄Π΅Π»Π΅Π½Π½ΡΠ΅ ΡΡΡΠ΄Π½ΠΎΡΡΠΈ.
ΠΠ»Ρ ΡΡΡΠ±, ΠΊΠΎΡΠΎΡΡΠ΅ Π²ΡΡ ΠΎΠ΄ΡΡ ΠΈΠ· ΠΏΠΎΠ»Π°, Π½Π΅ΠΎΠ±Ρ ΠΎΠ΄ΠΈΠΌΠΎ ΠΏΡΠΎΠ΄Π΅Π»ΡΠ²Π°ΡΡ ΠΎΡΠ²Π΅ΡΡΡΠΈΠ΅ Π² Π»Π°ΠΌΠ΅Π»ΠΈ, ΡΠΎΠΎΡΠ²Π΅ΡΡΡΠ²ΡΡΡΠ΅Π΅ ΠΏΠΎ Π΄ΠΈΠ°ΠΌΠ΅ΡΡΡ ΡΡΡΠ±Π΅. ΠΠ°ΡΠ΅ΠΌ Π΄Π΅ΡΠ°Π»Ρ ΡΠ°Π·ΡΠ΅Π·Π°Π΅ΡΡΡ ΠΏΠΎ Π΄ΠΈΠ°ΠΌΠ΅ΡΡΡ ΠΎΠΊΡΡΠΆΠ½ΠΎΡΡΠΈ, ΠΈ ΠΎΠ±Π΅ ΡΠ°ΡΡΠΈ ΡΡΡΠ°Π½Π°Π²Π»ΠΈΠ²Π°ΡΡΡΡ Π²ΠΎΠΊΡΡΠ³ ΡΡΡΠ±Ρ.
ΠΡΠ»ΠΈ ΠΆΠ΅ ΡΠ΅ΡΡ ΠΈΠ΄Π΅Ρ ΠΎ Π²ΡΡΡΡΠΏΠ°Ρ , Π½ΡΠΆΠ½ΠΎ ΠΎΠ±ΡΠ΅Π·Π°ΡΡ Π΄Π΅ΡΠ°Π»Ρ Π²ΡΡΡΠ½ΡΡ ΡΠ°ΠΊ, ΡΡΠΎΠ±Ρ ΠΎΠ½Π° ΠΏΠΎΠ»Π½ΠΎΡΡΡΡ Β«Π²ΠΌΠ΅ΡΡΠΈΠ»Π°Β» Π²ΡΡΡΡΠΏ Π² ΡΠ΅Π±Π΅, Π½Π΅ ΠΎΡΡΠ°Π²Π»ΡΡ Π·Π°Π·ΠΎΡΠΎΠ².Β
ΠΠ°ΠΊ ΡΠ°ΡΡΡΠΈΡΠ°ΡΡ Π»Π°ΠΌΠΈΠ½Π°Ρ, ΠΏΡΠ°Π²ΠΈΠ»Π° ΠΈ ΠΏΡΠ°ΠΊΡΠΈΡΠ΅ΡΠΊΠΈΠ΅ ΡΠΎΠ²Π΅ΡΡ, Π²ΠΈΠ΄Π΅ΠΎ ΠΈΠ½ΡΡΡΡΠΊΡΠΈΡ
ΠΠΎΠΊΡΡΡΠΈΠ΅ ΠΏΠΎΠ»Π° Π»Π°ΠΌΠΈΠ½Π°ΡΠΎΠΌ ΡΡΠ°Π»ΠΎ ΡΠ°ΠΊΠΈΠΌ ΠΏΠΎΠΏΡΠ»ΡΡΠ½ΡΠΌ, ΡΡΠΎ ΠΌΠ½ΠΎΠ³ΠΈΠ΅ ΠΏΡΡΠ°ΡΡΡΡ ΡΠ°Π·ΠΎΠ±ΡΠ°ΡΡΡΡ Π²Β ΡΡΡΠ°Π½ΠΎΠ²ΠΊΠ΅ ΡΠ°ΠΌΠΎΡΡΠΎΡΡΠ΅Π»ΡΠ½ΠΎ, Π½Π΅ ΠΏΡΠΈΠ±Π΅Π³Π°Ρ ΠΊ ΠΏΠΎΠΌΠΎΡΠΈ ΡΠΏΠ΅ΡΠΈΠ°Π»ΠΈΡΡΠΎΠ².
ΠΡΠ±ΠΈΡΠ°Ρ Π»Π°ΠΌΠΈΠ½Π°Ρ, Π½ΡΠΆΠ½ΠΎ ΡΡΠ΅ΡΡΡ, ΡΡΠΎ ΠΊΠ°ΠΆΠ΄Π°Ρ ΠΏΠ°ΡΡΠΈΡ ΠΈΠΌΠ΅Π΅Ρ ΡΠ²ΠΎΠΉ ΡΠ²Π΅Ρ ΠΈ ΡΠ·ΠΎΡ. ΠΠΎΡΡΠΎΠΌΡ, ΡΡΠΎΠ±Ρ ΠΏΡΠ°Π²ΠΈΠ»ΡΠ½ΠΎ ΠΏΠΎΠ΄ΠΎΠ±ΡΠ°ΡΡ ΠΊΠΎΠ»ΠΈΡΠ΅ΡΡΠ²ΠΎ Π»Π°ΠΌΠΈΠ½Π°ΡΠ°, Π½ΡΠΆΠ½ΠΎ ΡΠΎΡΠ½ΠΎ ΡΠ°ΡΡΡΠΈΡΠ°ΡΡ ΡΠ°Π·ΠΌΠ΅ΡΡ ΠΊΠΎΠΌΠ½Π°ΡΡ.
Π§ΡΠΎΠ±Ρ ΠΏΡΠ°Π²ΠΈΠ»ΡΠ½ΠΎ ΠΏΠΎΠ΄ΠΎΠ±ΡΠ°ΡΡ ΠΊΠΎΠ»ΠΈΡΠ΅ΡΡΠ²ΠΎ Π»Π°ΠΌΠΈΠ½Π°ΡΠ°, Π½ΡΠΆΠ½ΠΎ ΡΠΎΡΠ½ΠΎ ΡΠ°ΡΡΡΠΈΡΠ°ΡΡ ΡΠ°Π·ΠΌΠ΅ΡΡ ΠΊΠΎΠΌΠ½Π°ΡΡ
ΠΠ°Π²Π°ΠΉΡΠ΅ ΡΠ°Π·Π±Π΅ΡΠ΅ΠΌΡΡ, ΠΊΠ°ΠΊ ΡΠ°ΡΡΡΠΈΡΠ°ΡΡ Π»Π°ΠΌΠΈΠ½Π°Ρ ΠΏΡΠ°Π²ΠΈΠ»ΡΠ½ΠΎ, ΡΡΠΎΠ±Ρ Π½Π΅ ΠΎΡΠΈΠ±ΠΈΡΡΡΡ Π² Π΅Π³ΠΎ ΠΊΠΎΠ»ΠΈΡΠ΅ΡΡΠ²Π΅.
ΠΠ°ΠΊΠΈΠ΅ ΠΏΠ°ΡΠ°ΠΌΠ΅ΡΡΡ Π»Π°ΠΌΠΈΠ½ΠΈΡΠΎΠ²Π°Π½Π½ΠΎΠΉ Π΄ΠΎΡΠΊΠΈ?
Π’ΠΈΠΏ Π»Π°ΠΌΠΈΠ½ΠΈΡΠΎΠ²Π°Π½Π½ΠΎΠΉ Π΄ΠΎΡΠΊΠΈ Π·Π°Π²ΠΈΡΠΈΡ ΠΎΡ ΡΠΈΡΠΈΠ½Ρ ΠΈΠ·Π΄Π΅Π»ΠΈΡ.
ΠΡΠ½ΠΎΠ²Π½ΡΠΌΠΈ ΠΏΠΎΠΊΠ°Π·Π°ΡΠ΅Π»ΡΠΌΠΈ Π»Π°ΠΌΠΈΠ½Π°ΡΠ° ΡΠ²Π»ΡΡΡΡΡ:
- ΠΏΠ»Π°Π½ΠΊΠ°, ΠΊΠΎΡΠΎΡΠ°Ρ ΠΈΠΌΠΈΡΠΈΡΡΠ΅Ρ ΠΏΠ°ΡΠΊΠ΅Ρ β 90 ΠΌΠΌ;
- Π΄ΠΎΡΠΊΠ° Ρ ΡΠΈΡΡΠ½ΠΊΠΎΠΌ Π² Π²ΠΈΠ΄Π΅ ΠΊΠ΅ΡΠ°ΠΌΠΈΡΠ΅ΡΠΊΠΎΠΉ ΠΏΠ»ΠΈΡΠΊΠΈ β 330 ΠΌΠΌ;
- ΠΏΠ°Π½Π΅Π»Ρ, ΠΈΠΌΠΈΡΠΈΡΡΡΡΠ°Ρ Π΄Π΅ΡΠ΅Π²ΡΠ½Π½ΡΠΉ ΠΏΠΎΠ» β ΠΎΡ 185 Π΄ΠΎ 195 ΠΌΠΌ.
ΠΠΎ ΡΠΎΠ»ΡΠΈΠ½Π΅ ΠΎΠ½ΠΈ ΠΎΠ±ΡΡΠ½ΠΎ Π²ΡΠΏΡΡΠΊΠ°ΡΡΡΡ ΠΎΡ 6 Π΄ΠΎ 12 ΠΌΠΌ. ΠΠ½ΠΎΠ³Π΄Π° ΠΌΠΎΠΆΠ½ΠΎ Π²ΡΡΡΠ΅ΡΠΈΡΡ 14 ΠΌΠΌ.
Π‘Π°ΠΌΡΠ΅ ΠΏΠΎΠΏΡΠ»ΡΡΠ½ΡΠ΅ ΡΡΠ΅Π΄ΠΈ ΠΏΠΎΠΊΡΠΏΠ°ΡΠ΅Π»Π΅ΠΉ Π΄ΠΎΡΠΊΠΈ Ρ ΡΠ°Π·ΠΌΠ΅ΡΠΎΠΌ 1260 ΠΈ 1380 ΠΌΠΌ
Π‘Π°ΠΌΡΠ΅ ΠΏΠΎΠΏΡΠ»ΡΡΠ½ΡΠ΅ ΡΡΠ΅Π΄ΠΈ ΠΏΠΎΠΊΡΠΏΠ°ΡΠ΅Π»Π΅ΠΉ Π΄ΠΎΡΠΊΠΈ Ρ ΡΠ°Π·ΠΌΠ΅ΡΠΎΠΌ 1260 ΠΈ 1380 ΠΌΠΌ. Π’ΡΡΠ΄Π½Π΅ΠΉ ΡΠ°Π±ΠΎΡΠ°ΡΡ Ρ ΠΌΠ°ΡΠ΅ΡΠΈΠ°Π»Π°ΠΌΠΈ Π² Π΄Π»ΠΈΠ½Ρ 1845 ΠΌΠΌ.
Π Π°Π·ΠΌΠ΅Ρ ΠΈ Π³Π΅ΠΎΠΌΠ΅ΡΡΠΈΡ ΠΏΠΎΠ»Π° ΠΏΠΎΠ΄ΡΠΊΠ°ΠΆΡΡ Π²Π°ΠΌ, ΠΊΠ°ΠΊΠΎΠΉ ΡΠΈΠΏ Π»Π°ΠΌΠΈΠ½Π°ΡΠ° Π²ΡΠ±ΡΠ°ΡΡ ΠΈ ΠΊΠ°ΠΊ ΡΠ°ΡΡΡΠΈΡΠ°ΡΡ Π»Π°ΠΌΠΈΠ½Π°Ρ ΡΠ°ΠΌΠΎΡΡΠΎΡΡΠ΅Π»ΡΠ½ΠΎ.
ΠΡΡΡ Π½Π΅ΡΠΊΠΎΠ»ΡΠΊΠΎ Π²Π°ΡΠΈΠ°Π½ΡΠΎΠ², ΠΊΠ°ΠΊ ΡΠ°ΡΡΡΠΈΡΠ°ΡΡ Π»Π°ΠΌΠΈΠ½Π°Ρ Π½Π° ΠΊΠΎΠΌΠ½Π°ΡΡ, ΠΎΠ΄Π½Π°ΠΊΠΎ Π½ΠΈ ΠΎΠ΄ΠΈΠ½ ΠΈΠ· Π½ΠΈΡ Π½Π΅ Π²ΡΡΠΈΡΠ»ΠΈΡ Π΅Π³ΠΎ ΡΠ°ΠΊ, ΡΡΠΎΠ±Ρ Π½Π΅ ΠΏΠΎΠ»ΡΡΠΈΠ»ΠΎΡΡ ΠΎΠ±ΡΠ΅Π·ΠΊΠΎΠ². ΠΡΠΎΠΈΡΡ ΠΎΠ΄ΠΈΡ ΡΡΠΎ ΠΏΠΎΡΠΎΠΌΡ, ΡΡΠΎ Π΄ΠΎΡΠΊΠΈ ΠΏΠΎΠ΄ΡΠ΅Π·Π°ΡΡΡΡ Π²ΠΎ Π²ΡΠ΅ΠΌΡ ΡΠΊΠ»Π°Π΄ΡΠ²Π°Π½ΠΈΡ Π»Π°ΠΌΠΈΠ½ΠΈΡΠΎΠ²Π°Π½Π½ΠΎΠΉ Π΄ΠΎΡΠΊΠΈ, Ρ ΠΎΡΠΈΡΠ΅ Π²Ρ ΡΠΎΠ³ΠΎ ΠΈΠ»ΠΈ Π½Π΅Ρ. ΠΠΎΡΡΠΎΠΌΡ ΡΡΠΈ ΠΎΠ±ΡΠ΅Π·ΠΊΠΈ ΠΈ Π±ΡΠ΄ΡΡ ΡΠ²Π»ΡΡΡΡΡ ΠΎΡΡΠ°ΡΠΎΡΠ½ΡΠΌ ΠΌΠ°ΡΠ΅ΡΠΈΠ°Π»ΠΎΠΌ ΠΎΡ Π»Π°ΠΌΠΈΠ½Π°ΡΠ°.
ΠΠ°Π²Π°ΠΉΡΠ΅ ΠΏΡΠΎΠ°Π½Π°Π»ΠΈΠ·ΠΈΡΡΠ΅ΠΌ ΠΏΠ΅ΡΠ²ΡΠΉ ΠΌΠ΅ΡΠΎΠ΄.
ΠΠ»Ρ ΡΠ°ΡΡΠ΅ΡΠ° Π½ΡΠΆΠ½ΠΎ ΠΈΠΌΠ΅ΡΡ ΠΈΠ½ΡΠΎΡΠΌΠ°ΡΠΈΡ ΠΎ ΡΠ°Π·ΠΌΠ΅ΡΠ°Ρ ΠΏΠΎΠΌΠ΅ΡΠ΅Π½ΠΈΡ. ΠΠ°Π½Π½ΡΠΉ ΠΌΠ΅ΡΠΎΠ΄ ΠΏΡΠΈΠΌΠ΅Π½ΡΡΡ Π½Π΅ ΡΠΎΠ»ΡΠΊΠΎ Π΄ΠΎΠΌΠ°, Π½ΠΎ ΠΈ Π½Π° ΠΏΡΠ΅Π΄ΠΏΡΠΈΡΡΠΈΡΡ .
Π Π°Π·ΠΌΠ΅Ρ ΠΈ Π³Π΅ΠΎΠΌΠ΅ΡΡΠΈΡ ΠΏΠΎΠ»Π° ΠΏΠΎΠ΄ΡΠΊΠ°ΠΆΡΡ Π²Π°ΠΌ, ΠΊΠ°ΠΊΠΎΠΉ ΡΠΈΠΏ Π»Π°ΠΌΠΈΠ½Π°ΡΠ° Π²ΡΠ±ΡΠ°ΡΡ ΠΈ ΠΊΠ°ΠΊ ΡΠ°ΡΡΡΠΈΡΠ°ΡΡ Π»Π°ΠΌΠΈΠ½Π°Ρ ΡΠ°ΠΌΠΎΡΡΠΎΡΡΠ΅Π»ΡΠ½ΠΎ
ΠΡΠΏΠΎΠΌΠ½ΠΈΠΌ Π΄Π»Ρ ΡΡΠΎΠ³ΠΎ ΡΠΊΠΎΠ»ΡΠ½ΡΠ΅ Π·Π½Π°Π½ΠΈΡ. ΠΠ»Ρ ΡΠΎΠ³ΠΎ ΡΡΠΎΠ±Ρ ΡΠ·Π½Π°ΡΡ ΠΏΠ»ΠΎΡΠ°Π΄Ρ, Π½Π΅ΠΎΠ±Ρ
ΠΎΠ΄ΠΈΠΌΠΎ Π΄Π»ΠΈΠ½Ρ ΡΠΌΠ½ΠΎΠΆΠΈΡΡ Π½Π° ΡΠΈΡΠΈΠ½Ρ. ΠΡΠ²Π°ΡΡ Ρ ΠΊΠΎΠΌΠ½Π°ΡΡ ΠΈ Π½Π΅Π±ΠΎΠ»ΡΡΠΈΠ΅ ΠΏΡΠΎΡΡΡΠ°Π½ΡΡΠ²Π°, ΠΊΠΎΡΠΎΡΡΠ΅ Π½Π΅Π»ΡΠ·Ρ Π²ΠΏΠΈΡΠ°ΡΡ Π² ΠΎΠ±ΡΡΡ ΠΏΠ»ΠΎΡΠ°Π΄Ρ. Π’ΠΎΠ³Π΄Π° ΠΈΡ
Π±ΡΠ΄Π΅ΠΌ ΡΡΠΈΡΠ°ΡΡ ΠΎΡΠ΄Π΅Π»ΡΠ½ΠΎ. ΠΠ°ΡΠ΅ΠΌ ΡΠΊΠ»Π°Π΄ΡΠ²Π°Π΅ΠΌ 2 ΠΏΠΎΠ»ΡΡΠΈΠ²ΡΠΈΠ΅ΡΡ ΠΏΠ»ΠΎΡΠ°Π΄ΠΈ ΠΈ ΠΏΠΎΠ»ΡΡΠ°Π΅ΠΌ 1 ΠΎΠ±ΡΡΡ.
Π’Π΅ΠΏΠ΅ΡΡ ΡΠ°ΡΡΡΠΈΡΠ°Π΅ΠΌ, ΡΠΊΠΎΠ»ΡΠΊΠΎ Π»Π°ΠΌΠΈΠ½Π°ΡΠ° Π½ΡΠΆΠ½ΠΎ Π½Π° ΠΏΠΎΠ». Π¨ΠΈΡΠΈΠ½Π° Π»Π°ΠΌΠΈΠ½Π°ΡΠ° ΠΌΠΎΠΆΠ΅Ρ Π±ΡΡΡ 185 Π»ΠΈΠ±ΠΎ 195 ΠΌΠΌ, Π° Π² Π΄Π»ΠΈΠ½Ρ ΠΎΠ½Π° ΠΎΠ±ΡΡΠ½ΠΎ 1260 ΠΈΠ»ΠΈ 1380 ΠΌΠΌ. ΠΠΎΡΡΠΈΡΠ°Π΅ΠΌ ΠΏΠ»ΠΎΡΠ°Π΄Ρ ΠΏΠ°Π½Π΅Π»ΠΈ, ΡΠΌΠ½ΠΎΠΆΠΈΠ² ΡΠΈΡΠΈΠ½Ρ Π½Π° Π΄Π»ΠΈΠ½Ρ. Π’ΠΎΠ³Π΄Π° ΠΊΠ°ΠΊ ΡΠ°ΡΡΡΠΈΡΠ°ΡΡ, ΡΠΊΠΎΠ»ΡΠΊΠΎ Π½ΡΠΆΠ½ΠΎ Π»Π°ΠΌΠΈΠ½Π°ΡΠ°? ΠΠ»Ρ ΡΡΠΎΠ³ΠΎ Π²Π°ΠΌ Π½ΡΠΆΠ½ΠΎ ΠΏΠ»ΠΎΡΠ°Π΄Ρ ΠΊΠΎΠΌΠ½Π°ΡΡ ΠΏΠΎΠ΄Π΅Π»ΠΈΡΡ Π½Π° ΠΏΠ»ΠΎΡΠ°Π΄Ρ Π»Π°ΠΌΠΈΠ½Π°ΡΠ°, ΠΈ Π²Ρ ΡΠ·Π½Π°Π΅ΡΠ΅, ΡΠΊΠΎΠ»ΡΠΊΠΎ ΡΡΡΠΊ ΠΏΠ°Π½Π΅Π»Π΅ΠΉ Π²Π°ΠΌ Π½Π΅ΠΎΠ±Ρ ΠΎΠ΄ΠΈΠΌΠΎ Π²Π·ΡΡΡ Π½Π° ΠΊΠΎΠΌΠ½Π°ΡΡ. ΠΠ±ΡΠ·Π°ΡΠ΅Π»ΡΠ½ΠΎ Π½ΡΠΆΠ½ΠΎ Π±ΡΠ°ΡΡ Π² Π·Π°ΠΏΠ°Ρ. Π ΡΠΏΠ°ΠΊΠΎΠ²ΠΊΠ΅ Π²ΡΡΡΠ΅ΡΠ°Π΅ΡΡΡ ΠΎΠΊΠΎΠ»ΠΎ 8 ΡΡΡΠΊ Π»Π°ΠΌΠΈΠ½Π°ΡΠ°, Ρ ΠΎΡΡ Π±ΡΠ²Π°Π΅Ρ ΠΏΠΎ-ΡΠ°Π·Π½ΠΎΠΌΡ. Π’ΠΎ Π΅ΡΡΡ Π²Π°ΠΌ Π½ΡΠΆΠ½ΠΎ ΠΊΠΎΠ»ΠΈΡΠ΅ΡΡΠ²ΠΎ ΠΏΠ°Π½Π΅Π»Π΅ΠΉ ΠΏΠΎΠ΄Π΅Π»ΠΈΡΡ Π½Π° 8 ΡΡΡΠΊ Π² ΡΠΏΠ°ΠΊΠΎΠ²ΠΊΠ΅, ΠΈ Π²Ρ ΡΠ·Π½Π°Π΅ΡΠ΅, ΡΠΊΠΎΠ»ΡΠΊΠΎ ΠΏΠ°ΡΠ΅ΠΊ Π»Π°ΠΌΠΈΠ½Π°ΡΠ° Π²Π°ΠΌ Π½Π΅ΠΎΠ±Ρ ΠΎΠ΄ΠΈΠΌΠΎ ΠΏΡΠΈΠΎΠ±ΡΠ΅ΡΡΠΈ Π΄Π»Ρ ΡΠΊΠ»Π°Π΄ΠΊΠΈ ΠΏΠΎΠ»Π°.
Π’Π΅ΠΏΠ΅ΡΡ ΡΠ°ΡΡΠΌΠΎΡΡΠΈΠΌ Π²ΡΠΎΡΠΎΠΉ ΠΌΠ΅ΡΠΎΠ΄.
ΠΡΠΎΡΠΎΠΉ ΠΌΠ΅ΡΠΎΠ΄ Π² ΠΎΡΠ»ΠΈΡΠΈΠ΅ ΠΎΡ ΠΏΠ΅ΡΠ²ΠΎΠ³ΠΎ Π±Π΅ΡΠ΅Ρ Π²ΠΎ Π²Π½ΠΈΠΌΠ°Π½ΠΈΠ΅ ΠΊΠΎΠ»ΠΈΡΠ΅ΡΡΠ²ΠΎ ΠΎΠ±ΡΠ΅Π·ΠΊΠΎΠ² ΠΏΡΠΈ ΡΠΊΠ»Π°Π΄ΠΊΠ΅ Π»Π°ΠΌΠΈΠ½ΠΈΡΠΎΠ²Π°Π½Π½ΠΎΠΉ Π΄ΠΎΡΠΊΠΈ
ΠΠ°Π²Π°ΠΉΡΠ΅ ΡΠ°ΡΡΡΠΈΡΠ°Π΅ΠΌ Π»Π°ΠΌΠΈΠ½Π°Ρ Π² ΠΊΠΎΠΌΠ½Π°ΡΠ΅, Π³Π΄Π΅ Π΅ΡΡΡ Π²ΡΡΡΡΠΏΡ ΠΈ ΠΊΠΎΠ»ΠΎΠ½Π½Ρ. ΠΠ»Ρ ΡΡΠΎΠ³ΠΎ Π±ΡΠ΄Π΅ΠΌ ΠΎΡΠΈΠ΅Π½ΡΠΈΡΠΎΠ²Π°ΡΡΡΡ Π½Π° ΠΊΠΎΠΌΠ½Π°ΡΡ Ρ ΡΠ°Π·ΠΌΠ΅ΡΠ°ΠΌΠΈ 6,5Γ3,25 ΠΊΠ². ΠΌ ΠΈ Π»Π°ΠΌΠΈΠ½Π°ΡΠΎΠΌ Ρ ΡΠ°Π·ΠΌΠ΅ΡΠΎΠΌ 185Γ1260Β ΠΌΠΌ. ΠΠ΅ΡΠ΅Π²Π΅Π΄Π΅ΠΌ ΡΠ°Π·ΠΌΠ΅Ρ Π»Π°ΠΌΠΈΠ½ΠΈΡΠΎΠ²Π°Π½Π½ΠΎΠΉ Π΄ΠΎΡΠΊΠΈ ΠΈΠ· ΠΌΠΈΠ»Π»ΠΈΠΌΠ΅ΡΡΠ° Π² ΠΌΠ΅ΡΡΡ ΠΈ ΠΏΠΎΠ»ΡΡΠΈΠΌ 0,185Γ1,26 ΠΌ. ΠΠ½Π°Ρ Π΄Π»ΠΈΠ½Ρ ΠΊΠΎΠΌΠ½Π°ΡΡ Π² 6,5ΠΌ ΠΈ Π΄Π»ΠΈΠ½Ρ ΠΏΠ°Π½Π΅Π»ΠΈ Π² 1,26ΠΌ, ΠΏΠΎΠ΄Π΅Π»ΠΈΠΌ ΡΡΠΈ 2 ΡΠΈΡΠ»Π° ΠΈ ΡΠ·Π½Π°Π΅ΠΌ, ΡΠΊΠΎΠ»ΡΠΊΠΎ ΡΡΡΠΊ Π½Π΅ΠΎΠ±Ρ ΠΎΠ΄ΠΈΠΌΠΎ Π²Π·ΡΡΡ. ΠΠ°ΡΠ΅ΠΌ ΡΠΈΡΠΈΠ½Ρ ΠΊΠΎΠΌΠ½Π°ΡΡ Π² 3,25 ΠΌ Π΄Π΅Π»ΠΈΠΌ Π½Π° ΡΠΈΡΠΈΠ½Ρ Π»Π°ΠΌΠΈΠ½Π°ΡΠ° ΠΈ ΡΠΎΠΆΠ΅ ΠΏΠΎΠ»ΡΡΠ°Π΅ΠΌ ΡΡΡΠΊΠΈ. ΠΠ΅ΡΠ΅ΠΌΠ½ΠΎΠΆΠ°Π΅ΠΌ ΠΏΠΎΠ»ΡΡΠ΅Π½Π½ΡΠ΅ ΡΠ΅Π·ΡΠ»ΡΡΠ°ΡΡ ΠΈ ΠΏΠΎΠ»ΡΡΠ°Π΅ΠΌ ΡΠΈΡΠ»ΠΎ, ΠΊΠΎΡΠΎΡΠΎΠ΅ ΠΎΠ±ΠΎΠ·Π½Π°ΡΠ°Π΅Ρ, ΡΠΊΠΎΠ»ΡΠΊΠΎ Π½ΡΠΆΠ½ΠΎ Π΄Π»Ρ ΠΊΠΎΠΌΠ½Π°ΡΡ Π»Π°ΠΌΠΈΠ½Π°ΡΠ°. ΠΠ΅ Π·Π°Π±ΡΠ΄Π΅ΠΌ Π΄ΠΎΠ±Π°Π²ΠΈΡΡ ΠΈΠΌΠ΅ΡΡΠ΅ΠΉΡΡ ΠΊΡΡΠΎΠΊ Ρ ΡΠ°Π·ΠΌΠ΅ΡΠΎΠΌ 0,4Γ1,17 ΠΌ. ΠΠΎΠ΄Π΅Π»ΠΈΠΌ 0,4 ΠΌ/0,185 ΠΌ ΠΈ ΠΏΠΎΠ»ΡΡΠΈΠΌ Π΅ΡΠ΅ 2 ΠΏΠ°Π½Π΅Π»ΠΈ. Π’ΠΎ Π΅ΡΡΡ ΠΊ ΠΏΠΎΠ»ΡΡΠ΅Π½Π½ΡΠΌ ΡΡΡΠΊΠ°ΠΌ Π΄ΠΎΠ±Π°Π²Π»ΡΠ΅ΠΌ Π΅ΡΠ΅ 2 ΠΏΠ°Π½Π΅Π»ΠΈ ΠΈ ΠΏΠΎΠ»ΡΡΠ°Π΅ΠΌ 101 ΠΏΠ°Π½Π΅Π»Ρ ΠΈΠ»ΠΈ 101/8=12,625 ΠΈΠ»ΠΈ 12 ΠΏΠ°ΡΠ΅ΠΊ ΠΈ 5 ΡΡΡΠΊ ΠΏΠ°Π½Π΅Π»Π΅ΠΉ.
ΠΡ ΡΠ²ΠΈΠ΄ΠΈΡΠ΅ ΠΏΠΎΠ»ΡΡΠΈΠ²ΡΡΡΡΡ ΡΠ°Π·Π½ΠΈΡΡ ΠΏΡΠΈ ΡΠ°ΡΡΠ΅ΡΠ°Ρ , ΠΊΠΎΡΠΎΡΠ°Ρ ΡΠΎΡΡΠ°Π²Π»ΡΠ΅Ρ 9 ΠΏΠ°Π½Π΅Π»Π΅ΠΉ. Π ΡΠ΅ΠΌ ΠΆΠ΅ Π΄Π΅Π»ΠΎ? ΠΠ°ΠΊ ΠΆΠ΅ ΡΠ°ΡΡΡΠΈΡΠ°ΡΡ Π»Π°ΠΌΠΈΠ½Π°Ρ Π½Π° ΠΊΠΎΠΌΠ½Π°ΡΡ Π²ΡΠΎΡΡΠΌ ΠΌΠ΅ΡΠΎΠ΄ΠΎΠΌ?
ΠΡΠΎΡΠΎΠΉ ΠΌΠ΅ΡΠΎΠ΄ Π² ΠΎΡΠ»ΠΈΡΠΈΠ΅ ΠΎΡ ΠΏΠ΅ΡΠ²ΠΎΠ³ΠΎ Π±Π΅ΡΠ΅Ρ Π²ΠΎ Π²Π½ΠΈΠΌΠ°Π½ΠΈΠ΅ ΠΊΠΎΠ»ΠΈΡΠ΅ΡΡΠ²ΠΎ ΠΎΠ±ΡΠ΅Π·ΠΊΠΎΠ² ΠΏΡΠΈ ΡΠΊΠ»Π°Π΄ΠΊΠ΅ Π»Π°ΠΌΠΈΠ½ΠΈΡΠΎΠ²Π°Π½Π½ΠΎΠΉ Π΄ΠΎΡΠΊΠΈ. ΠΠΎΡΡΠΎΠΌΡ Π²ΡΠΎΡΠ°Ρ ΠΌΠ΅ΡΠΎΠ΄ΠΈΠΊΠ° ΡΠ²Π»ΡΠ΅ΡΡΡ ΡΠ°ΠΌΠΎΠΉ ΠΏΡΠΎΠ²Π΅ΡΠ΅Π½Π½ΠΎΠΉ ΠΈ Π½Π°Π΄Π΅ΠΆΠ½ΠΎΠΉ.
Π ΠΊΠ°ΠΊ ΠΆΠ΅ Π±ΡΡΡ Ρ Π²ΡΡΡΡΠΏΠΎΠΌ? ΠΠΎ-ΠΏΠ΅ΡΠ²ΡΡ
, Π΅Π³ΠΎ ΠΈΠ·ΠΌΠ΅ΡΡΡΡ. ΠΠ»Ρ Π΄Π°Π½Π½ΠΎΠ³ΠΎ Π²ΡΡΡΡΠΏΠ° Π²Π°ΠΌ ΠΏΠΎΠ½Π°Π΄ΠΎΠ±ΠΈΡΡΡ ΠΎΠΊΠΎΠ»ΠΎ 2 ΠΏΠ°Π½Π΅Π»Π΅ΠΉ.
ΠΡΠ»ΠΈ ΡΠ°ΡΡΡΠΈΡΡΠ²Π°ΡΡ ΠΏΠΎ ΠΏΠ΅ΡΠ²ΠΎΠΌΡ ΠΌΠ΅ΡΠΎΠ΄Ρ, ΡΠΎ ΡΠ°ΠΌ ΠΎΡΡΠ°Π΅ΡΡΡ Π΄ΠΎΡΡΠ°ΡΠΎΡΠ½ΠΎΠ΅ ΡΠΈΡΠ»ΠΎ ΠΎΠ±ΡΠ΅Π·ΠΊΠΎΠ², ΡΡΠΎ ΠΏΠΎΠΌΠΎΠ³Π°Π΅Ρ ΡΡΠΊΠΎΠ½ΠΎΠΌΠΈΡΡ Π½Π° ΠΊΠΎΠ»ΠΈΡΠ΅ΡΡΠ²Π΅ ΠΏΠ°Π½Π΅Π»Π΅ΠΉ Π² ΡΠΌΠ΅ΠΆΠ½ΠΎΠΉ ΠΊΠΎΠΌΠ½Π°ΡΠ΅. ΠΡΠΎ ΠΎΡΠ΅Π½Ρ ΡΠ΄ΠΎΠ±Π½ΠΎ.
Π ΡΠ°ΡΡΠ΅ΡΠ°Ρ Π³Π»Π°Π²Π½ΠΎΠ΅ β ΡΡΠ΅ΡΡΡ Π΅ΡΠ΅ ΡΠΎΡ ΡΠ°ΠΊΡ, ΡΡΠΎ Π½Π΅ΠΎΠ±Ρ ΠΎΠ΄ΠΈΠΌ ΠΎΡΡΡΡΠΏ ΠΎΡ ΡΡΠ΅Π½Ρ Π² 1 β 1,5ΡΠΌ
Π ΡΠ°ΡΡΠ΅ΡΠ°Ρ Π³Π»Π°Π²Π½ΠΎΠ΅ β ΡΡΠ΅ΡΡΡ Π΅ΡΠ΅ ΡΠΎΡ ΡΠ°ΠΊΡ, ΡΡΠΎ Π½Π΅ΠΎΠ±Ρ ΠΎΠ΄ΠΈΠΌ ΠΎΡΡΡΡΠΏ ΠΎΡ ΡΡΠ΅Π½Ρ Π² 1 β 1,5ΡΠΌ. ΠΡΠΎ ΠΏΠΎΠΌΠΎΠ³Π°Π΅Ρ ΡΡΠΊΠΎΠ½ΠΎΠΌΠΈΡΡ ΡΠ΅Π»ΡΠΉ ΡΡΠ΄ Π»Π°ΠΌΠΈΠ½ΠΈΡΠΎΠ²Π°Π½Π½ΠΎΠΉ Π΄ΠΎΡΠΊΠΈ.
ΠΠ°ΠΊ ΡΠ°ΡΡΡΠΈΡΠ°ΡΡ Π»Π°ΠΌΠΈΠ½Π°Ρ Ρ ΠΏΠΎΠΌΠΎΡΡΡ ΠΊΠ°Π»ΡΠΊΡΠ»ΡΡΠΎΡΠ°?
ΠΠ°Π»ΡΠΊΡΠ»ΡΡΠΎΡ ΡΠ²Π»ΡΠ΅ΡΡΡ Π²Π΅ΡΠ½ΡΠΌ ΠΏΠΎΠΌΠΎΡΠ½ΠΈΠΊΠΎΠΌ Π² ΡΠ°ΡΡΠ΅ΡΠ°Ρ Π½ΡΠΆΠ½ΠΎΠ³ΠΎ ΠΊΠΎΠ»ΠΈΡΠ΅ΡΡΠ²Π° Π»Π°ΠΌΠΈΠ½Π°ΡΠ°. Π’Π°ΠΊ ΠΊΠ°ΠΊ ΡΠ°ΡΡΡΠΈΡΠ°ΡΡ Π»Π°ΠΌΠΈΠ½Π°Ρ Ρ ΠΏΠΎΠΌΠΎΡΡΡ ΠΊΠ°Π»ΡΠΊΡΠ»ΡΡΠΎΡΠ°?
ΠΠ°Π»ΡΠΊΡΠ»ΡΡΠΎΡ ΡΠ²Π»ΡΠ΅ΡΡΡ Π²Π΅ΡΠ½ΡΠΌ ΠΏΠΎΠΌΠΎΡΠ½ΠΈΠΊΠΎΠΌ Π² ΡΠ°ΡΡΠ΅ΡΠ°Ρ Π½ΡΠΆΠ½ΠΎΠ³ΠΎ ΠΊΠΎΠ»ΠΈΡΠ΅ΡΡΠ²Π° Π»Π°ΠΌΠΈΠ½Π°ΡΠ°
ΠΠ΄Π½Π°ΠΊΠΎ ΡΡΡΠΈΡΠ΅, ΡΡΠΎ Π½ΠΈ ΠΎΠ΄ΠΈΠ½ ΠΊΠ°Π»ΡΠΊΡΠ»ΡΡΠΎΡ Π½Π΅ Π΄Π°Π΅Ρ ΡΠΎΡΠ½ΠΎΠΉ ΠΊΠ°ΡΡΠΈΠ½Ρ Π½Π°ΡΡΠ΅Ρ ΠΈΡΠΏΠΎΡΡΠ΅Π½Π½ΡΡ Π΄ΠΎΡΠΎΠΊ ΠΏΡΠΈ ΡΠ΅ΠΌΠΎΠ½ΡΠ΅. ΠΡΠΏΠΎΠ»ΡΠ·ΡΠΉΡΠ΅ ΠΏΠΎΠ»ΡΡΠ΅Π½Π½ΡΠ΅ Π΄Π°Π½Π½ΡΠ΅ Π½Π΅ Π² ΠΏΡΠ°ΠΊΡΠΈΡΠ΅ΡΠΊΠΈΡ ΡΠ΅Π»ΡΡ , Π° ΠΊΠ°ΠΊ ΠΏΠΎΠ²ΠΎΠ΄ ΠΏΠΎΡΠ°Π·ΠΌΡΡΠ»ΠΈΡΡ Π½Π°Π΄ ΠΏΡΠ΅Π΄ΡΡΠΎΡΡΠΈΠΌ ΡΠ΅ΠΌΠΎΠ½ΡΠΎΠΌ ΠΏΠΎΠ»Π°.
Π§ΡΠΎΠ±Ρ Π²ΡΡΡΠ½ΡΡ ΠΎΠΏΡΠ΅Π΄Π΅Π»ΠΈΡΡ Π½ΡΠΆΠ½ΠΎΠ΅ ΡΠΈΡΠ»ΠΎ ΠΏΠ°Π½Π΅Π»Π΅ΠΉ, ΠΈΡΠΏΠΎΠ»ΡΠ·ΡΠ΅ΠΌ Π΄Π»Ρ ΡΠ΄ΠΎΠ±ΡΡΠ²Π° Π»ΠΈΠ½Π΅ΠΉΠΊΡ, ΡΡΠ»Π΅ΡΠΊΡ, ΡΡΡΠΊΡ ΠΈ Π±ΡΠΌΠ°Π³Ρ.
ΠΠ° Π·Π°ΠΌΠ΅ΡΠΊΡ! ΠΠ° ΠΌΠ½ΠΎΠ³ΠΈΡ ΡΠ°ΠΉΡΠ°Ρ Π²ΡΡΡΠ΅ΡΠ°Π΅ΡΡΡ ΠΊΠ°Π»ΡΠΊΡΠ»ΡΡΠΎΡ, ΠΊΠΎΡΠΎΡΡΠΉ ΠΏΠΎΠΌΠΎΠ³Π°Π΅Ρ ΡΠ°ΡΡΡΠΈΡΠ°ΡΡ Π½Π΅ΠΎΠ±Ρ ΠΎΠ΄ΠΈΠΌΠΎΠ΅ ΠΊΠΎΠ»ΠΈΡΠ΅ΡΡΠ²ΠΎ ΠΏΠ°Π½Π΅Π»Π΅ΠΉ.
ΠΠΈ ΠΎΠ΄ΠΈΠ½ ΠΊΠ°Π»ΡΠΊΡΠ»ΡΡΠΎΡ Π½Π΅ Π΄Π°Π΅Ρ ΡΠΎΡΠ½ΠΎΠΉ ΠΊΠ°ΡΡΠΈΠ½Ρ Π½Π°ΡΡΠ΅Ρ ΠΈΡΠΏΠΎΡΡΠ΅Π½Π½ΡΡ Π΄ΠΎΡΠΎΠΊ ΠΏΡΠΈ ΡΠ΅ΠΌΠΎΠ½ΡΠ΅
Π Π΄Π»Ρ ΡΠΎΠ³ΠΎ ΡΡΠΎΠ±Ρ ΠΈΡΠΏΠΎΠ»ΡΠ·ΠΎΠ²Π°ΡΡ ΠΊΠ°Π»ΡΠΊΡΠ»ΡΡΠΎΡ Π΄Π»Ρ ΡΠ°ΡΡΠ΅ΡΠ° Π»Π°ΠΌΠΈΠ½Π°ΡΠ° Π½Π° ΠΊΠΎΠΌΠ½Π°ΡΡ, Π½ΡΠΆΠ½ΠΎ Π²ΡΠ΅Π³ΠΎ Π»ΠΈΡΡ Π²Π²Π΅ΡΡΠΈ ΠΏΠ°ΡΠ°ΠΌΠ΅ΡΡΡ ΠΊΠΎΠΌΠ½Π°ΡΡ. Π ΠΈΡΠΎΠ³Π΅ Π²Ρ ΠΏΠΎΠ»ΡΡΠΈΡΠ΅, ΡΠΊΠΎΠ»ΡΠΊΠΎ ΠΎΠ±ΡΠ΅Π·ΠΊΠΎΠ² ΠΏΠΎΠ»ΡΡΠΈΡΡΡ, ΠΊΠ°ΠΊΠΎΠ΅ ΠΊΠΎΠ»ΠΈΡΠ΅ΡΡΠ²ΠΎ Π»Π°ΠΌΠΈΠ½Π°ΡΠ° Π½Π΅ΠΎΠ±Ρ ΠΎΠ΄ΠΈΠΌΠΎ ΠΈΡΠΏΠΎΠ»ΡΠ·ΠΎΠ²Π°ΡΡ ΡΠ΅Π»ΠΈΠΊΠΎΠΌ Π½Π° ΠΊΠΎΠΌΠ½Π°ΡΡ, ΠΎΡΠΏΠΈΠ» Π΄ΠΎΡΠΎΠΊ, ΡΠΈΡΠΈΠ½Ρ ΠΎΠ±ΡΠ΅Π·ΠΊΠΎΠ², ΡΠΈΡΠ»ΠΎ ΡΠΏΠ°ΠΊΠΎΠ²ΠΎΠΊ.
ΠΠ΄Π½Π°ΠΊΠΎ ΠΏΠ΅ΡΠ΅Π΄ ΡΠ΅ΠΌ ΠΊΠ°ΠΊ Π½Π°ΡΠ°ΡΡ ΠΏΠΎΠΊΡΠΏΠΊΡ Π»Π°ΠΌΠΈΠ½Π°ΡΠ°, ΠΏΡΠΎΠΊΠΎΠ½ΡΡΠ»ΡΡΠΈΡΡΠΉΡΠ΅ΡΡ ΡΠΎ ΡΠΏΠ΅ΡΠΈΠ°Π»ΠΈΡΡΠΎΠΌ, ΠΏΠΎΠΊΠ°ΠΆΠΈΡΠ΅ Π΅ΠΌΡ ΡΠ°ΡΡΠ΅Ρ. Π‘ΠΎΠ²Π΅ΡΡΠ΅ΠΌ Π²Π°ΠΌ ΠΊΡΠΏΠΈΡΡ Π΄ΠΎΠΏΠΎΠ»Π½ΠΈΡΠ΅Π»ΡΠ½ΡΡ ΠΏΠ°ΡΠΊΡ Π»Π°ΠΌΠΈΠ½Π°ΡΠ°, ΡΠ°ΠΊ ΠΊΠ°ΠΊ Π²ΠΎ Π²ΡΠ΅ΠΌΡ ΠΏΠ΅ΡΠ΅Π²ΠΎΠ·ΠΊΠΈ Π³ΡΡΠ·Π° Ρ ΠΌΠ΅ΡΡΠ° Π½Π° ΠΌΠ΅ΡΡΠΎ ΡΠΏΠ°ΠΊΠΎΠ²ΠΊΠ° ΠΌΠΎΠΆΠ΅Ρ ΠΏΠΎΠ²ΡΠ΅Π΄ΠΈΡΡΡΡ, Π° Π½Π°ΠΉΡΠΈ ΠΏΠΎΡ ΠΎΠΆΠΈΠΉ ΠΌΠ°ΡΠ΅ΡΠΈΠ°Π» Π·Π°ΡΠ΅ΠΌ Π±ΡΠ΄Π΅Ρ Π½Π°ΠΌΠ½ΠΎΠ³ΠΎ ΡΡΡΠ΄Π½Π΅ΠΉ.
Π‘ΠΎΠ²Π΅Ρ! ΠΠΎΠ½Π΅ΡΠ½ΠΎ, ΡΠ°ΡΡΡΠΈΡΠ°ΡΡ ΠΊΠΎΠ»ΠΈΡΠ΅ΡΡΠ²ΠΎ Π»Π°ΠΌΠΈΠ½Π°ΡΠ° ΡΠ΄ΠΎΠ±Π½Π΅ΠΉ ΠΊΠ°Π»ΡΠΊΡΠ»ΡΡΠΎΡΠΎΠΌ, Π½ΠΎ ΠΌΡ Π²Π°Ρ ΡΠ²Π΅ΡΡΠ΅ΠΌ, ΡΡΠΎ Π²ΡΡΡΠ½ΡΡ Π±ΡΠ΄Π΅Ρ Π½Π°Π΄Π΅ΠΆΠ½Π΅ΠΉ.
ΠΡΠΎΠ²Π΅ΡΠ΅Π½ΠΎ ΠΌΠ°ΡΡΠ΅ΡΠ°ΠΌΠΈ.
ΠΡΠ°ΠΊΡΠΈΡΠ΅ΡΠΊΠΈΠ΅ ΡΠΎΠ²Π΅ΡΡ ΠΏΠΎ ΡΠΊΠ»Π°Π΄ΠΊΠ΅ ΠΏΠΎΠ»Π°
ΠΠ°ΡΠ΅ΡΡΠ²Π΅Π½Π½ΡΠΉ ΡΠΎΠ²Π°Ρ Π΄ΠΎΡΠΎΠ³ΠΎΠΉ, ΠΏΠΎΡΡΠΎΠΌΡ Π½Π΅ ΡΠΊΠΎΠ½ΠΎΠΌΡΡΠ΅ Π½Π° Π½Π΅ΠΌ
ΠΠΎΡ Π½Π΅ΠΊΠΎΡΠΎΡΡΠ΅ ΠΈΠ· Π½ΠΈΡ :
- ΠΠ°ΠΊ ΡΠ°ΡΡΡΠΈΡΠ°ΡΡ Π»Π°ΠΌΠΈΠ½Π°Ρ Π½Π° ΠΊΠΎΠΌΠ½Π°ΡΡ ΠΏΡΠ°Π²ΠΈΠ»ΡΠ½ΠΎ, ΠΏΠΎΠΌΠΎΠΆΠ΅Ρ Π²Π°ΠΌ Π»ΠΈΡΡΠΎΠΊ Π±ΡΠΌΠ°Π³ΠΈ ΠΈ ΠΊΠ°ΡΠ°Π½Π΄Π°Ρ. ΠΠ»Ρ ΡΡΠΎΠ³ΠΎ Π²Π°ΠΌ Π½ΡΠΆΠ½ΠΎ Π²ΡΡΠ΅ΡΡΠΈΡΡ ΡΡ Π΅ΠΌΡ ΠΏΠΎΠΌΠ΅ΡΠ΅Π½ΠΈΡ, Π³Π΄Π΅ Π±ΡΠ΄Π΅Ρ ΡΠΊΠ»Π°Π΄ΡΠ²Π°ΡΡΡΡ ΠΏΠΎΠ». ΠΠ°ΡΠ΅ΠΌ ΡΠΊΠ°ΠΆΠΈΡΠ΅ ΠΌΠ΅ΡΡΠ°, Π³Π΄Π΅ Π±ΡΠ΄ΡΡ Π½ΠΈΡΠ°, ΠΏΠ»ΠΈΠ½ΡΡΡ, Π±Π°ΡΠ°ΡΠ΅Ρ ΠΈ Π΄Ρ.
- ΠΠ»Π°Π½ΠΈΡΠΎΠ²ΠΊΠ° Π΄ΠΎΠ»ΠΆΠ½Π° Π±ΡΡΡ ΡΠΊΠ°Π·Π°Π½Π° Π±ΠΎΠ»Π΅Π΅ Π΄Π΅ΡΠ°Π»ΡΠ½ΠΎ Ρ ΡΠ΅Π°Π»ΡΠ½ΡΠΌΠΈ ΡΠ°Π·ΠΌΠ΅ΡΠ°ΠΌΠΈ.
- ΠΠ»ΠΎΡΠ°Π΄Ρ ΠΏΠΎΠΌΠ΅ΡΠ΅Π½ΠΈΡ ΠΈΠ·ΠΌΠ΅ΡΡΠ΅ΡΡΡ ΠΏΠΎ ΠΏΠΎΠ²Π΅ΡΡ Π½ΠΎΡΡΠΈ ΠΏΠΎΠ»Π°, Π° Π½Π΅ Π²Π΄ΠΎΠ»Ρ ΡΡΠ΅Π½Ρ.
- ΠΠΎΠΊΡΠΏΠ°ΠΉΡΠ΅ ΠΏΠ»Π°Π½ΠΊΠΈ ΡΠ΅Ρ ΡΠ°Π·ΠΌΠ΅ΡΠΎΠ², ΠΊΠΎΡΠΎΡΡΠ΅ ΡΠΎΠΎΡΠ²Π΅ΡΡΡΠ²ΡΡΡ ΠΏΠ°ΡΠ°ΠΌΠ΅ΡΡΠ°ΠΌ ΠΊΠΎΠΌΠ½Π°ΡΡ.
- ΠΠ°ΡΠΊΠΈΡΠΎΠ²ΠΊΠ° ΠΈ ΡΠΈΡΡΠ½ΠΊΠΈ Π½Π° ΡΠΏΠ°ΠΊΠΎΠ²ΠΊΠ΅ ΠΏΡΠ΅Π΄ΠΎΡΡΠ°Π²Π»ΡΡΡ ΠΈΠ½ΡΠΎΡΠΌΠ°ΡΠΈΡ ΠΎ ΡΠΎΠ²Π°ΡΠ΅, ΠΏΠΎΡΡΠΎΠΌΡ Π΄Π΅ΡΠ°Π»ΡΠ½ΠΎ ΡΠ°ΡΡΠΌΠΎΡΡΠΈΡΠ΅ ΠΈΡ .
- ΠΠ°ΡΠ΅ΡΡΠ²Π΅Π½Π½ΡΠΉ ΡΠΎΠ²Π°Ρ Π΄ΠΎΡΠΎΠ³ΠΎΠΉ, ΠΏΠΎΡΡΠΎΠΌΡ Π½Π΅ ΡΠΊΠΎΠ½ΠΎΠΌΡΡΠ΅ Π½Π° Π½Π΅ΠΌ. Π£Π²ΠΈΠ΄ΠΈΡΠ΅, ΡΠ΅Π·ΡΠ»ΡΡΠ°Ρ Π½Π΅ Π·Π°ΡΡΠ°Π²ΠΈΡ ΡΠ΅Π±Ρ ΠΆΠ΄Π°ΡΡ. ΠΠ±ΡΠ°ΡΠΈΡΠ΅ Π²Π½ΠΈΠΌΠ°Π½ΠΈΠ΅ Π½Π° ΠΊΠ»Π°ΡΡ ΠΏΡΠΎΠ΄ΡΠΊΡΠΈΠΈ. ΠΠ½ ΠΏΠΎΠΊΠ°Π·ΡΠ²Π°Π΅Ρ, ΡΠΊΠΎΠ»ΡΠΊΠΎ ΠΏΡΠΎΡΠ»ΡΠΆΠΈΡ ΡΠΎΠ²Π°Ρ.
- Π‘ΡΠ°Π·Ρ ΠΎΠΏΡΠ΅Π΄Π΅Π»ΠΈΡΠ΅ΡΡ, ΠΊΠ°ΠΊΠΈΠΌ ΠΈΠ· ΡΠΏΠΎΡΠΎΠ±ΠΎΠ² Π±ΡΠ΄Π΅Ρ ΠΏΡΠΎΠΈΠ·Π²ΠΎΠ΄ΠΈΡΡΡΡ ΡΠΊΠ»Π°Π΄ΠΊΠ° ΠΏΠΎΠ»Π°. ΠΠΎ ΡΠΏΠΎΡΠΎΠ±Ρ Π±ΡΠ΄Π΅Ρ Π·Π°Π²ΠΈΡΠ΅ΡΡ, ΠΊΠ°ΠΊ Π²Π°ΠΌ ΡΠ°ΡΡΡΠΈΡΠ°ΡΡ Π»Π°ΠΌΠΈΠ½Π°Ρ ΠΈ ΠΊΠ°ΠΊΠΈΠΌ Π²ΠΏΠΎΡΠ»Π΅Π΄ΡΡΠ²ΠΈΠΈ Π±ΡΠ΄Π΅Ρ ΠΌΠΎΠ½ΡΠ°ΠΆ Π½Π°ΠΏΠΎΠ»ΡΠ½ΠΎΠ³ΠΎ ΠΏΠΎΠΊΡΡΡΠΈΡ. ΠΠ΅ΡΠΏΠ΅Π½Π΄ΠΈΠΊΡΠ»ΡΡΠ½Π°Ρ ΡΠΊΠ»Π°Π΄ΠΊΠ° ΠΏΡΠ΅Π΄ΡΡΠΌΠ°ΡΡΠΈΠ²Π°Π΅Ρ 5% Π·Π°ΠΏΠ°ΡΠ° Π΄ΠΎΡΠΎΠΊ, Π΄ΠΈΠ°Π³ΠΎΠ½Π°Π»ΡΠ½Π°Ρ β 10%. ΠΡΠΈ ΡΠΈΠ³ΡΡΠ½ΠΎΠΉ ΡΠΊΠ»Π°Π΄ΠΊΠ΅ ΠΏΠ°Π½Π΅Π»Π΅ΠΉ Π²Π°ΠΌ Π½ΡΠΆΠ½ΠΎ Π±ΡΠ΄Π΅Ρ ΠΏΠΎΡΡΠ°ΡΠΈΡΡ Π½Π° ΠΎΠ±ΡΠ΅Π· 25% ΠΌΠ°ΡΠ΅ΡΠΈΠ°Π»Π°. Π€ΠΈΠ³ΡΡΠ½Π°Ρ ΡΠΊΠ»Π°Π΄ΠΊΠ° -ΡΠΎΡΠ΅Π½Ρ Π½Π΅ΡΠΊΠΎΠ½ΠΎΠΌΠ½ΡΠΉ Π²Π°ΡΠΈΠ°Π½Ρ, Ρ ΠΎΡΡ ΠΏΠΎ ΡΡΡΠ΅ΡΠΈΡΠ΅ΡΠΊΠΈΠΌ ΡΠΎΠΎΠ±ΡΠ°ΠΆΠ΅Π½ΠΈΡΠΌ ΠΏΡΠ΅Π²ΠΎΡΡ ΠΎΠ΄ΠΈΡ ΠΎΡΡΠ°Π»ΡΠ½ΡΠ΅ Π²ΠΈΠ΄Ρ.
- ΠΠ±ΡΠ°ΡΠ°ΠΉΡΠ΅ΡΡ Ρ ΠΏΠ»Π°Π½ΠΊΠ°ΠΌΠΈ ΠΊΠ°ΠΊ ΠΌΠΎΠΆΠ½ΠΎ Π°ΠΊΠΊΡΡΠ°ΡΠ½Π΅ΠΉ, ΡΡΠΎΠ±Ρ Π½Π΅ ΠΏΠΎΠ²ΡΠ΅Π΄ΠΈΡΡ.
Π Π΄Π°Π»ΡΡΠ΅ ΠΎΡΡΠ°Π½Π΅ΡΡΡ Π»ΠΈΡΡ Π²ΠΎΠΏΡΠΎΡ ΠΎ ΡΠΎΠΌ, ΠΊΠ°ΠΊ ΡΠ°ΡΡΡΠΈΡΠ°ΡΡ Π»Π°ΠΌΠΈΠ½Π°Ρ Ρ Π½Π°ΠΈΠΌΠ΅Π½ΡΡΠΈΠΌΠΈ Π΄Π»Ρ ΡΠ΅Π±Ρ Π·Π°ΡΡΠ°ΡΠ°ΠΌΠΈ.
Π ΠΊΠ°ΠΊΠΎΠΌ ΠΌΠ΅ΡΡΠ΅ ΠΌΠΎΠΆΠ½ΠΎ Π½Π΅ Π΄Π΅Π»Π°ΡΡ ΡΠΊΠ»Π°Π΄ΠΊΡ Π»Π°ΠΌΠΈΠ½Π°ΡΠ°?
ΠΠ°Π½Π½ΡΠΌ ΡΡΠ°ΡΡΠΊΠΎΠΌ ΡΠ²Π»ΡΠ΅ΡΡΡ ΠΌΠ΅ΡΡΠΎ, Π³Π΄Π΅ ΡΡΡΠ°Π½Π°Π²Π»ΠΈΠ²Π°Π΅ΡΡΡ ΡΠΊΠ°Ρ. ΠΠ³ΠΎ ΠΊΡΠ΅ΠΏΡΡ ΠΊ ΡΡΡΠΆΠΊΠ΅, ΡΡΠΎ ΠΏΡΠ΅Π΄ΠΎΡΠ²ΡΠ°ΡΠ°Π΅Ρ ΠΈΠ·Π³ΠΈΠ±Π°Π½ΠΈΠ΅ ΠΏΠΎΠ»Π° Π² ΠΎΡΠ΄Π΅Π»ΡΠ½ΡΡ Π΅Π³ΠΎ ΡΡΠ°ΡΡΠΊΠ°Ρ .
Π ΠΌΠ΅ΡΡΠ΅ ΡΡΡΠ°Π½ΠΎΠ²ΠΊΠΈ ΡΠΊΠ°ΡΠ° ΠΌΠΎΠΆΠ½ΠΎ Π½Π΅ ΠΊΠ»Π°ΡΡΡ Π»Π°ΠΌΠΈΠ½Π°ΡΠ°
ΠΡΠ»ΠΈ ΡΠΊΠ°Ρ Π±Π΅Π· Π΄Π½Π°, ΡΠΎ ΡΠ½Π°ΡΠ°Π»Π° ΡΡΡΠ°Π½Π°Π²Π»ΠΈΠ²Π°ΡΡ ΠΊΡΠ΅ΠΏΠ»Π΅Π½ΠΈΡ, Π° Π·Π°ΡΠ΅ΠΌ ΠΏΡΠΎΠΈΠ·Π²ΠΎΠ΄ΡΡ Π½Π°ΡΡΠΈΠ».
Π§ΡΠΎ Π·Π½Π°ΡΠΈΡ Π½Π΅ΡΠΈΠΌΠΌΠ΅ΡΡΠΈΡΠ½Π°Ρ ΡΠΊΠ»Π°Π΄ΠΊΠ°?
ΠΠ°Π½Π½ΡΠΉ ΡΠΏΠΎΡΠΎΠ± ΠΏΠΎΠ΄ΡΠ°Π·ΡΠΌΠ΅Π²Π°Π΅Ρ ΠΌΠ΅Π½ΡΡΠΈΠΉ ΡΠ°ΡΡ
ΠΎΠ΄ Π»Π°ΠΌΠΈΠ½Π°ΡΠ°.
ΠΡΠ»ΠΈ Π΄Π΅Π»Π°ΡΡ, ΠΊΠ°ΠΊ ΠΏΠΎΠ»Π°Π³Π°Π΅ΡΡΡ, ΡΠΎ Ρ ΡΠ°ΠΊΠΈΠΌ ΡΠΏΠΎΡΠΎΠ±ΠΎΠΌ Π½Π΅ Π²ΡΠ΅Π³Π΄Π° ΡΡΠΎ ΡΠ΄Π°Π΅ΡΡΡ. ΠΡΠΆΠ½ΠΎ ΡΡΠ΅ΡΡΡ ΠΌΠΈΠ½ΠΈΠΌΠ°Π»ΡΠ½ΡΡ Π΄Π»ΠΈΠ½Ρ ΠΏΠΎ ΠΊΡΠ°ΡΠΌ 30 ΡΠΌ, Π° ΡΠΈΡΠΈΠ½Ρ 5 ΡΠΌ. ΠΠΎ Π΄Π°Π½Π½ΠΎΠΉ ΠΌΠ΅ΡΠΎΠ΄ΠΈΠΊΠ΅ ΠΎΡΡΠ°ΡΠΎΠΊ Π΄ΠΎΡΠΊΠΈ Ρ ΠΏΠ΅ΡΠ²ΠΎΠ³ΠΎ ΡΡΠ΄Π° Π½ΡΠΆΠ½ΠΎ ΡΡΡΠ°Π½ΠΎΠ²ΠΈΡΡ Π² Π½Π°ΡΠ°Π»ΠΎ Π²ΡΠΎΡΠΎΠ³ΠΎ ΡΡΠ΄Π° ΠΈ ΡΠ°ΠΊ Π΄Π°Π»Π΅Π΅. ΠΠΎΡΡΠΎΠΌΡ Π½Π΅ Π²ΡΠ΅Π³Π΄Π° ΠΏΠΎΠ»ΡΡΠ°Π΅ΡΡΡ ΡΠ΅Π·ΡΠ»ΡΡΠ°Ρ, Π½Π° ΠΊΠΎΡΠΎΡΡΠΉ ΡΠ°ΡΡΡΠΈΡΡΠ²Π°Π΅ΡΡ.
ΠΠΎ ΠΌΠ΅ΡΠΎΠ΄ΠΈΠΊΠ΅ Β«Π½Π΅ΡΠΈΠΌΠΌΠ΅ΡΡΠΈΡΠ½ΠΎΠΉ ΡΠΊΠ»Π°Π΄ΠΊΠΈΒ» ΠΎΡΡΠ°ΡΠΎΠΊ Π΄ΠΎΡΠΊΠΈ Ρ ΠΏΠ΅ΡΠ²ΠΎΠ³ΠΎ ΡΡΠ΄Π° Π½ΡΠΆΠ½ΠΎ ΡΡΡΠ°Π½ΠΎΠ²ΠΈΡΡ Π² Π½Π°ΡΠ°Π»ΠΎ Π²ΡΠΎΡΠΎΠ³ΠΎ ΡΡΠ΄Π° ΠΈ ΡΠ°ΠΊ Π΄Π°Π»Π΅Π΅
ΠΡΠ»ΠΈ Π½Π΅ ΡΠ»Π΅Π΄ΠΎΠ²Π°ΡΡ Π΄Π°Π½Π½ΠΎΠΉ ΠΌΠ΅ΡΠΎΠ΄ΠΈΠΊΠ΅, ΡΠΎ ΠΊΠ°ΡΠ΅ΡΡΠ²ΠΎ ΠΏΠΎΠΊΡΡΡΠΈΡ ΡΠ½ΠΈΠ·ΠΈΡΡΡ, ΡΡΠΎ Π½Π΅ΠΆΠ΅Π»Π°ΡΠ΅Π»ΡΠ½ΠΎ.
Π§ΡΠΎ Π΅ΡΠ΅ Π½ΡΠΆΠ½ΠΎ ΡΡΠ΅ΡΡΡ ΠΏΡΠΈ ΡΠΊΠ»Π°Π΄ΠΊΠ΅?
ΠΠ°ΠΆΠ½ΠΎ! ΠΡ Π΄ΠΎΠ»ΠΆΠ½Ρ ΠΎΠ±ΡΠ°ΡΠΈΡΡ Π²Π½ΠΈΠΌΠ°Π½ΠΈΠ΅ Π½Π΅ ΡΠΎΠ»ΡΠΊΠΎ Π½Π° ΡΠΎ, ΠΊΠ°ΠΊ ΠΏΡΠ°Π²ΠΈΠ»ΡΠ½ΠΎ ΡΠΎΡΡΠ°Π²ΠΈΡΡ ΡΠ΅ΡΡΠ΅ΠΆ, ΡΠ°ΡΠΊΡΠΎΠΈΡΡ Π»Π°ΠΌΠΈΠ½Π°Ρ ΠΈ ΡΠ°ΡΡΡΠΈΡΠ°ΡΡ Π΅Π³ΠΎ ΠΊΠΎΠ»ΠΈΡΠ΅ΡΡΠ²ΠΎ. ΠΠ°Π·ΠΎΡΡ, ΠΊΠΎΡΠΎΡΡΠ΅ Π΄ΠΎΠ»ΠΆΠ½Ρ Π±ΡΡΡ Π½Π° ΡΠ»ΡΡΠ°ΠΉ ΡΠ΅ΠΌΠΏΠ΅ΡΠ°ΡΡΡΠ½ΠΎΠ³ΠΎ ΡΠ°ΡΡΠΈΡΠ΅Π½ΠΈΡ Π½Π°ΠΏΠΎΠ»ΡΠ½ΠΎΠ³ΠΎ ΠΏΠΎΠΊΡΡΡΠΈΡ, ΡΠΎΠΆΠ΅ ΠΎΠ±ΡΠ·Π°Π½Ρ Π±ΡΡΡ.
ΠΠ½ΠΈ ΡΠΎΡΡΠ°Π²Π»ΡΡΡ ΠΏΡΠΈΠ±Π»ΠΈΠ·ΠΈΡΠ΅Π»ΡΠ½ΠΎ 8-12ΠΌΠΌ ΠΏΠΎ Π²ΡΠ΅ΠΉ Π΄Π»ΠΈΠ½Π΅ ΡΡΠ΅Π½. ΠΡΠΆΠ½ΠΎ ΡΡΠ΅ΡΡΡ, ΡΡΠΎ ΠΎΠ±Ρ ΠΎΠ΄Ρ ΠΏΡΠ΅ΠΏΡΡΡΡΠ²ΠΈΡ Π² Π²ΠΈΠ΄Π΅ ΠΏΠΎΡΠΎΠ³Π° ΠΈΠ»ΠΈ ΡΡΡΠ±Ρ, Π½Π΅ΠΎΠ±Ρ ΠΎΠ΄ΠΈΠΌΠΎ Π΄Π΅Π»Π°ΡΡ Π·Π°Π·ΠΎΡ. Π§ΡΠΎΠ±Ρ Π·Π°Π·ΠΎΡΡ Π½Π΅ Π±ΡΠΎΡΠ°Π»ΠΈΡΡ Π² Π³Π»Π°Π·Π°, ΠΈΡ Π·Π°ΠΊΡΡΠ²Π°ΡΡ ΠΏΠ»ΠΈΠ½ΡΡΡΠΎΠΌ Π»ΠΈΠ±ΠΎ Π΄Π΅ΠΊΠΎΡΠ°ΡΠΈΠ²Π½ΡΠΌ ΠΏΠΎΡΠΎΠ³ΠΎΠΌ.
ΠΡΠΆΠ½ΠΎ ΡΡΠ΅ΡΡΡ, ΡΡΠΎ ΠΎΠ±Ρ ΠΎΠ΄Ρ ΠΏΡΠ΅ΠΏΡΡΡΡΠ²ΠΈΡ Π² Π²ΠΈΠ΄Π΅ ΠΏΠΎΡΠΎΠ³Π° ΠΈΠ»ΠΈ ΡΡΡΠ±Ρ, Π½Π΅ΠΎΠ±Ρ ΠΎΠ΄ΠΈΠΌΠΎ Π΄Π΅Π»Π°ΡΡ Π·Π°Π·ΠΎΡ
Π Π·Π°ΠΊΠ»ΡΡΠ΅Π½ΠΈΠ΅ ΠΎΡΠΌΠ΅ΡΠΈΠΌ, ΡΡΠΎ ΠΌΡ Π²ΡΠ΅-ΡΠ°ΠΊΠΈ Π½Π°ΡΡΠΈΠ»ΠΈ Π²Π°Ρ, ΠΊΠ°ΠΊ ΠΏΡΠ°Π²ΠΈΠ»ΡΠ½ΠΎ ΡΠ°ΡΡΡΠΈΡΠ°ΡΡ ΠΊΠΎΠ»ΠΈΡΠ΅ΡΡΠ²ΠΎ Π»Π°ΠΌΠΈΠ½Π°ΡΠ°, ΠΏΡΠΈΠ±Π΅Π³Π½ΡΠ² ΠΊ ΠΏΠΎΠΌΠΎΡΠΈ ΠΊΠ°Π»ΡΠΊΡΠ»ΡΡΠΎΡΠ° ΠΈ Π½Π΅ΡΠΊΠΎΠ»ΡΠΊΠΈΠΌ ΠΌΠ΅ΡΠΎΠ΄Π°ΠΌ ΡΠ°ΡΡΠ΅ΡΠ°. ΠΠ΄Π½Π°ΠΊΠΎ, ΡΠ²Π΅ΡΡΠ΅ΠΌ Π²Π°Ρ, ΡΡΠΎ Π²ΡΠΎΡΠΎΠΉ ΠΌΠ΅ΡΠΎΠ΄ Π±ΡΠ΄Π΅Ρ Π±ΠΎΠ»Π΅Π΅ ΡΡΡΠ΅ΠΊΡΠΈΠ²Π΅Π½, ΡΠ°ΠΊ ΠΊΠ°ΠΊ ΡΠ°ΡΡΠ΅Ρ Π»Π°ΠΌΠΈΠ½Π°ΡΠ° Π²ΠΊΠ»ΡΡΠ°Π΅Ρ Π² ΡΠ΅Π±Ρ ΠΈ ΠΎΡΠΎΠ±Π΅Π½Π½ΠΎΡΡΠΈ ΠΏΠΎΠΌΠ΅ΡΠ΅Π½ΠΈΡ, Π³Π΄Π΅ Π±ΡΠ΄Π΅Ρ ΡΠΊΠ»Π°Π΄ΡΠ²Π°ΡΡΡΡ ΠΏΠΎΠ».
ΠΠ±ΡΠ°ΡΠΈΠΌ Π²Π½ΠΈΠΌΠ°Π½ΠΈΠ΅ Π½Π° ΡΠΎ, ΡΡΠΎ Π²ΡΠΏΠΎΠ»Π½ΠΈΠ² ΡΠ°ΡΡΠ΅Ρ Π²ΡΡΡΠ½ΡΡ, Π²Ρ ΡΠ²ΠΈΠ΄ΠΈΡΠ΅ ΡΠ΅Π°Π»ΡΠ½ΡΡ ΠΊΠ°ΡΡΠΈΠ½Ρ ΠΏΡΠΎΠΈΡΡ ΠΎΠ΄ΡΡΠ΅Π³ΠΎ ΠΈ ΠΎΠΏΡΠ΅Π΄Π΅Π»ΠΈΡΠ΅ Π½ΡΠΆΠ½ΡΠΉ Π·Π°ΠΏΠ°Ρ Π»Π°ΠΌΠΈΠ½Π°ΡΠ°. ΠΠΎΠΆΠ΅Ρ Π΄Π»Ρ ΡΡΠΎΠ³ΠΎ Π²Π°ΠΌ ΠΏΠΎΠ½Π°Π΄ΠΎΠ±ΠΈΡΡΡ ΠΏΡΠΈΠ»ΠΎΠΆΠΈΡΡ ΡΡΠΈΠ»ΠΈΡ, ΡΡΠΎΠ±Ρ Π΄ΠΎΠ±ΠΈΡΡΡΡ ΠΏΠΎΠ»ΠΎΠΆΠΈΡΠ΅Π»ΡΠ½ΡΡ ΡΠ΅Π·ΡΠ»ΡΡΠ°ΡΠΎΠ².
Π‘ΠΊΠΎΠ»ΡΠΊΠΎ Π»Π°ΠΌΠΈΠ½Π°ΡΠ° Π² ΠΊΠ²Π°Π΄ΡΠ°ΡΠ½ΠΎΠΌ ΠΌΠ΅ΡΡΠ΅, ΡΠ°ΡΡΠ΅Ρ ΡΠΊΠ»Π°Π΄ΠΊΠΈ Π»Π°ΠΌΠΈΠ½Π°ΡΠ°, ΡΠΊΠΎΠ»ΡΠΊΠΎ Π»Π°ΠΌΠΈΠ½Π°ΡΠ° Π² ΡΠΏΠ°ΠΊΠΎΠ²ΠΊΠ΅
ΠΠ°ΠΌΠΈΠ½Π°Ρ β ΠΏΡΠΈΠ²Π»Π΅ΠΊΠ°ΡΠ΅Π»ΡΠ½ΠΎΠ΅ Π½Π°ΠΏΠΎΠ»ΡΠ½ΠΎΠ΅ ΠΏΠΎΠΊΡΡΡΠΈΠ΅. ΠΠΎΠ»ΠΎΠΆΠΈΡΡ Π΅Π³ΠΎ Π½Π° ΠΏΠΎΠ» Π² ΡΠ²ΠΎΠ΅ΠΌ Π΄ΠΎΠΌΠ΅ β ΠΎΡΠ»ΠΈΡΠ½ΠΎΠ΅ ΡΠ΅ΡΠ΅Π½ΠΈΠ΅. ΠΠ΄Π½Π°ΠΊΠΎ ΠΏΡΠ΅ΠΆΠ΄Π΅ ΡΠ΅ΠΌ ΠΎΡΠΏΡΠ°Π²ΠΈΡΡΡΡ Π·Π° ΠΏΠΎΠΊΡΠΏΠΊΠΎΠΉ, Π½Π΅ΠΎΠ±Ρ
ΠΎΠ΄ΠΈΠΌΠΎ ΠΎΡΡΡΠ΅ΡΡΠ²ΠΈΡΡ ΡΠ°ΡΡΠ΅Ρ ΡΠΊΠ»Π°Π΄ΠΊΠΈ Π»Π°ΠΌΠΈΠ½Π°ΡΠ°.
ΠΠ°ΠΊ ΡΠ°ΡΡΡΠΈΡΠ°ΡΡ ΠΊΠΎΠ»ΠΈΡΠ΅ΡΡΠ²ΠΎ Π»Π°ΠΌΠΈΠ½Π°ΡΠ°, ΡΡΠΎΠ±Ρ ΠΊ ΠΊΠΎΠ½ΡΡ ΠΌΠΎΠ½ΡΠ°ΠΆΠ° Ρ Π²Π°Ρ Π½Π΅ ΠΎΡΡΠ°Π»ΠΎΡΡ Π»ΠΈΡΠ½Π΅Π³ΠΎ ΠΌΠ°ΡΠ΅ΡΠΈΠ°Π»Π° ΠΈΠ»ΠΈ Π½Π΅ ΠΎΠ±ΡΠ°Π·ΠΎΠ²Π°Π»Π°ΡΡ Π½Π΅Ρ
Π²Π°ΡΠΊΠ° Π½Π΅ΡΠΊΠΎΠ»ΡΠΊΠΈΡ
ΠΏΠ°Π½Π΅Π»Π΅ΠΉ? Π Π°ΡΡΠ΅Ρ Π»Π°ΠΌΠΈΠ½Π°ΡΠ° ΠΎΡΡΡΠ΅ΡΡΠ²Π»ΡΠ΅ΡΡΡ Π΄ΠΎΠ²ΠΎΠ»ΡΠ½ΠΎ ΠΏΡΠΎΡΡΠΎ, Π½Π΅ΠΎΠ±Ρ
ΠΎΠ΄ΠΈΠΌΠΎ Π»ΠΈΡΡ Π³ΡΠ°ΠΌΠΎΡΠ½ΠΎ ΠΎΡΠ½Π΅ΡΡΠΈΡΡ ΠΊ ΡΡΠΎΠΌΡ Π·Π°Π½ΡΡΠΈΡ.
ΠΠ°ΠΊ ΡΠ°ΡΡΡΠΈΡΠ°ΡΡ Π»Π°ΠΌΠΈΠ½Π°Ρ Π½Π° ΠΊΠΎΠΌΠ½Π°ΡΡ
ΠΠΎΠ½ΡΠ°ΠΆ ΡΡΠΎΠ³ΠΎ Π½Π°ΠΏΠΎΠ»ΡΠ½ΠΎΠ³ΠΎ ΠΏΠΎΠΊΡΡΡΠΈΡ Π½Π°ΡΠΈΠ½Π°Π΅ΡΡΡ Ρ ΡΠ°ΡΡΠ΅ΡΠ° ΡΠΈΡΠ»Π° Π½Π΅ΠΎΠ±Ρ ΠΎΠ΄ΠΈΠΌΡΡ ΠΏΠ°Π½Π΅Π»Π΅ΠΉ ΠΈ ΡΠΈΡΠ»Π° ΡΠΏΠ°ΠΊΠΎΠ²ΠΎΠΊ ΠΌΠ°ΡΠ΅ΡΠΈΠ°Π»Π° ΠΏΠΎΠ΄ ΠΎΠΏΡΠ΅Π΄Π΅Π»Π΅Π½Π½ΡΠΉ ΡΠ°Π·ΠΌΠ΅Ρ ΠΊΠΎΠΌΠ½Π°ΡΡ. ΠΠΎΠΆΠ½ΠΎ Π²ΠΎΡΠΏΠΎΠ»ΡΠ·ΠΎΠ²Π°ΡΡΡΡ ΠΎΠ½Π»Π°ΠΉΠ½ — ΠΊΠ°Π»ΡΠΊΡΠ»ΡΡΠΎΡΠΎΠΌ, ΠΊΠΎΡΠΎΡΡΠΉ Π±ΡΡΡΡΠΎ ΠΏΡΠΎΠΈΠ·Π²Π΅Π΄Π΅Ρ Π½Π΅ΠΎΠ±Ρ ΠΎΠ΄ΠΈΠΌΡΠ΅ ΡΠ°ΡΡΠ΅ΡΡ. ΠΠ΄Π½Π°ΠΊΠΎ ΠΏΠ΅ΡΠ΅Π΄ ΡΡΠΈΠΌ Π½ΡΠΆΠ½ΠΎ Π΅ΡΠ΅ ΡΠΎΡΡΠ°Π²ΠΈΡΡ ΡΡ Π΅ΠΌΡ ΡΠ°ΡΠΏΠΎΠ»ΠΎΠΆΠ΅Π½ΠΈΡ ΠΏΠ°Π½Π΅Π»Π΅ΠΉ Π»Π°ΠΌΠΈΠ½Π°ΡΠ°. ΠΡΠΈ ΡΡΠ°ΡΠ΅Π»ΡΠ½ΡΡ ΡΠ°ΡΡΠ΅ΡΠ°Ρ ΠΎΡΡΠ°Π΅ΡΡΡ ΠΌΠΈΠ½ΠΈΠΌΠ°Π»ΡΠ½ΠΎΠ΅ ΠΊΠΎΠ»ΠΈΡΠ΅ΡΡΠ²ΠΎ ΠΎΡΡ ΠΎΠ΄ΠΎΠ².
Π‘Π»Π΅Π΄ΡΡ ΡΠΎΡΡΠ°Π²Π»Π΅Π½Π½ΠΎΠΌΡ ΠΏΠ»Π°Π½Ρ, ΠΌΠΎΠ½ΡΠ°ΠΆ Π»Π°ΠΌΠΈΠ½Π°ΡΠ° Π±ΡΠ΄Π΅Ρ Π½Π΅ ΡΠ»ΠΎΠΆΠ½Π΅Π΅ ΡΠ±ΠΎΡΠΊΠΈ Π΄Π΅ΡΡΠΊΠΎΠ³ΠΎ ΠΊΠΎΠ½ΡΡΡΡΠΊΡΠΎΡΠ°. ΠΡΠ»ΠΈ Π³Π΅ΠΎΠΌΠ΅ΡΡΠΈΡ ΠΊΠΎΠΌΠ½Π°ΡΡ ΡΠ»ΠΎΠΆΠ½ΠΎΠΉ ΡΠΎΡΠΌΡ, Π΅Π΅ Π»ΡΡΡΠ΅ ΡΠ°Π·Π±ΠΈΡΡ Π½Π° ΠΏΡΡΠΌΠΎΡΠ³ΠΎΠ»ΡΠ½ΠΈΠΊΠΈ ΠΈ ΠΏΡΠΎΡΡΠΈΡΠ°ΡΡ Π²ΡΠ΅ ΠΎΡΠ΄Π΅Π»ΡΠ½ΠΎ.
ΠΠ΅ΡΠΊΠΎΠ»ΡΠΊΠΎ Π²Π°ΠΆΠ½ΡΡ ΠΏΡΠ°Π²ΠΈΠ», ΠΊΠΎΡΠΎΡΡΡ ΡΡΠΎΠΈΡ ΠΏΡΠΈΠ΄Π΅ΡΠΆΠΈΠ²Π°ΡΡΡΡ:
- Π½ΡΠΆΠ½ΠΎ ΡΡΠ΅ΡΡΡ ΠΌΠ΅ΡΠΎΠ΄ ΡΠΊΠ»Π°Π΄ΠΊΠΈ. ΠΠΎ Π²ΡΠ΅ΠΌΡ ΠΏΡΡΠΌΠΎΠ³ΠΎ ΠΌΠΎΠ½ΡΠ°ΠΆΠ° Π½Π΅ΠΎΠ±Ρ ΠΎΠ΄ΠΈΠΌΠΎ ΠΏΡΠΈΠ±Π°Π²ΠΈΡΡ ΠΊ ΠΎΠ±ΡΠ΅ΠΉ ΠΏΠ»ΠΎΡΠ°Π΄ΠΈ ΠΏΡΠΈΠΌΠ΅ΡΠ½ΠΎ 4-5% ΠΌΠ°ΡΠ΅ΡΠΈΠ°Π»Π°, ΠΊΠΎΡΠΎΡΡΠΉ Π² ΠΏΡΠΎΡΠ΅ΡΡΠ΅ ΡΠΊΠ»Π°Π΄ΠΊΠΈ ΠΈΠ·ΡΠ°ΡΡ ΠΎΠ΄ΡΠ΅ΡΡΡ Π½Π° ΠΏΠΎΠ΄ΡΠ΅Π·ΠΊΡ. Π Π²ΠΎΡ Π² Π΄ΠΈΠ°Π³ΠΎΠ½Π°Π»ΡΠ½ΠΎΠΉ ΡΠΊΠ»Π°Π΄ΠΊΠ΅ Π½Π΅ΠΎΠ±Ρ ΠΎΠ΄ΠΈΠΌΠΎ ΠΏΡΠΈΠΎΠ±ΡΠ΅ΡΡΠΈ Π½Π° 10-15% Π±ΠΎΠ»ΡΡΠ΅
- Π΄Π»Ρ Π²ΡΡΠΈΡΠ»Π΅Π½ΠΈΡ ΠΎΠ±ΡΠ΅ΠΉ ΠΏΠ»ΠΎΡΠ°Π΄ΠΈ Π½ΡΠΆΠ½ΠΎ Π»ΠΈΡΡ ΡΠΌΠ½ΠΎΠΆΠΈΡΡ ΡΠΈΡΠΈΠ½Ρ ΠΊΠΎΠΌΠ½Π°ΡΡ Π½Π° Π΅Π΅ Π΄Π»ΠΈΠ½Ρ
- Π½Π΅ ΡΡΠΎΠΈΡ ΠΏΡΠΈΠΎΠ±ΡΠ΅ΡΠ°ΡΡ ΠΏΠ°Π½Π΅Π»ΠΈ ΡΡΡΠΊΠ°ΠΌΠΈ. ΠΡΠΏΠΈΡΠ΅ Π² ΡΠΏΠ°ΠΊΠΎΠ²ΠΊΠ΅, Π‘ΠΊΠΎΠ»ΡΠΊΠΎ Π»Π°ΠΌΠΈΠ½Π°ΡΠ° Π² ΡΠΏΠ°ΠΊΠΎΠ²ΠΊΠ΅? ΠΡΠ° ΠΈΠ½ΡΠΎΡΠΌΠ°ΡΠΈΡ Π΅ΡΡΡ Π½Π° ΠΊΠ°ΠΆΠ΄ΠΎΠΉ ΠΏΠ°ΡΠΊΠ΅
- ΠΏΠΎΡΠ»Π΅ ΡΠΎΠ³ΠΎ, ΠΊΠ°ΠΊ Π²Π΅ΡΠ½Π΅ΡΠ΅ΡΡ ΠΈΠ· ΠΌΠ°Π³Π°Π·ΠΈΠ½Π° Π΄ΠΎΡΡΠ°Π½ΡΡΠ΅ ΠΎΠ΄Π½Ρ ΠΏΠ°Π½Π΅Π»Ρ ΠΈΠ· ΡΠΏΠ°ΠΊΠΎΠ²ΠΊΠΈ ΠΈ ΠΏΡΠΈΠ»ΠΎΠΆΠΈΡΠ΅ Π΅Π΅ ΠΏΠΎΠ» Π½Π΅ΡΠΊΠΎΠ»ΡΠΊΠΎ ΡΠ°Π·, Π΄Π»Ρ ΠΈΠ·ΠΌΠ΅ΡΠ΅Π½ΠΈΡ ΡΠΈΡΠΈΠ½Ρ ΠΈ Π΄Π»ΠΈΠ½Ρ Π΅ΡΠ΅ ΡΠ°Π·. ΠΠ΅ΡΠ΅ΠΌΠ½ΠΎΠΆΡΡΠ΅ ΠΏΠΎΠ»ΡΡΠ΅Π½Π½ΡΠ΅ ΡΠΈΡΡΡ. Π ΠΏΠΎΠ»ΡΡΠ΅Π½Π½ΠΎΠΌΡ ΡΠ΅Π·ΡΠ»ΡΡΠ°ΡΡ Π΄ΠΎΠ±Π°Π²ΡΡΠ΅ 5% Π½Π° ΠΏΠΎΠ΄ΡΠ΅Π·ΠΊΡ.
ΠΡΠΎ Π³Π»Π°Π²Π½ΡΠ΅ ΠΏΡΠ°Π²ΠΈΠ»Π° ΡΠΎΠ³ΠΎ, ΠΊΠ°ΠΊ ΡΠ°ΡΡΡΠΈΡΠ°ΡΡ Π»Π°ΠΌΠΈΠ½Π°Ρ, ΠΎΠ΄Π½Π°ΠΊΠΎ ΠΏΡΠΈΡΡΡΡΡΠ²ΡΠ΅Ρ ΡΡΠ΄ Π½ΡΠ°Π½ΡΠΎΠ². ΠΠ΅ ΡΠΊΠΎΠ½ΠΎΠΌΡΡΠ΅ ΠΈ Π½Π΅ ΠΏΠΎΠΊΡΠΏΠ°ΠΉΡΠ΅ ΠΌΠ°ΡΠ΅ΡΠΈΠ°Π»Π° ΠΌΠ΅Π½ΡΡΠ΅, ΡΠ΅ΠΌ Π² ΡΠ°ΡΡΠ΅ΡΠ°Ρ
. ΠΡΠ²Π°Π΅Ρ, ΡΡΠΎ ΡΠ°ΠΊΠΎΠ³ΠΎ ΡΠ²Π΅ΡΠ° Π² ΠΌΠ°Π³Π°Π·ΠΈΠ½Π΅ Π½Π΅ ΠΎΠΊΠ°ΠΆΠ΅ΡΡΡ, ΠΈ Π²Ρ Π±ΡΠ΄Π΅ΡΠ΅ Π²ΡΠ½ΡΠΆΠ΄Π΅Π½Ρ ΠΆΠ΄Π°ΡΡ Π½Π΅ ΠΈΠ·Π²Π΅ΡΡΠ½ΠΎ ΡΠΊΠΎΠ»ΡΠΊΠΎ, ΠΏΠΎΠΊΠ° Ρ ΠΏΡΠΎΠΈΠ·Π²ΠΎΠ΄ΡΡΠ²Π° ΠΏΡΠΈΠ²Π΅Π·ΡΡ Π½ΡΠΆΠ½ΡΠΉ ΠΌΠ°ΡΠ΅ΡΠΈΠ°Π». Π Π±ΡΠ²Π°Π΅Ρ ΠΈ ΡΠ°ΠΊ, ΡΡΠΎ ΠΈΠ·Π³ΠΎΡΠΎΠ²Π»Π΅Π½ΠΈΠ΅ ΡΠ°ΠΊΠΈΡ
ΠΏΠ°Π½Π΅Π»Π΅ΠΉ Π²ΠΎΠΎΠ±ΡΠ΅ Π·Π°ΠΊΠΎΠ½ΡΠΈΠ»ΠΎΡΡ? Π’Π°ΠΊΠΎΠ΅ ΡΠΎΠΆΠ΅ Π±ΡΠ²Π°Π΅Ρ, ΠΏΠΎ ΡΡΠΎ ΠΏΡΠΈΡΠΈΠ½Π΅ ΠΏΠΎΠ΄ΡΡΠΈΡΠ°ΡΡ ΡΠΈΡΠ»ΠΎ Π½ΡΠΆΠ½ΡΡ
ΠΏΠ°Π½Π΅Π»Π΅ΠΉ Π½Π΅ΠΎΠ±Ρ
ΠΎΠ΄ΠΈΠΌΠΎ Π·Π°ΡΠ°Π½Π΅Π΅ ΠΈ ΠΎΡΠ΅Π½Ρ ΠΎΡΠ²Π΅ΡΡΡΠ²Π΅Π½Π½ΠΎ.
ΠΠ½ΠΎΠ³ΠΈΠ΅ Π»ΡΠ΄ΠΈ Π·Π°Π΄Π°ΡΡΡΡ Π²ΠΎΠΏΡΠΎΡΠΎΠΌ, ΠΊΠ°ΠΊΠ°Ρ ΡΠΎΠ»ΡΠΈΠ½Π° Π»Π°ΠΌΠΈΠ½Π°ΡΠ°? Π‘ΡΡΠ΅ΡΡΠ²ΡΡΡ ΠΏΠ°Π½Π΅Π»ΠΈ ΡΠ°Π·Π½ΠΎΠΉ ΡΠΎΠ»ΡΠΈΠ½Ρ, ΠΎΡ 6 Π΄ΠΎ 12 ΠΌΠΌ. Π’ΠΎΠ»ΡΠΈΠ½Π° Π»Π°ΠΌΠΈΠ½Π°ΡΠ° Π·Π°Π²ΠΈΡΠΈΡ ΠΎΡ ΡΠΎΠ»ΡΠΈΠ½Ρ HDF, Π° ΡΠ°ΠΊΠΆΠ΅, ΠΎΡ ΡΠΎΠ»ΡΠΈΠ½Ρ Π·Π°ΡΠΈΡΠ½ΠΎΠ³ΠΎ ΡΠ»ΠΎΡ. ΠΠ°ΡΠΈΡΠ½ΡΠΉ ΡΠ»ΠΎΠΉ Π±ΡΠ²Π°Π΅Ρ ΠΎΡ 0,2 Π΄ΠΎ 0,6 ΠΌΠΌ. ΠΡΠΎΡ ΠΏΠΎΠΊΠ°Π·Π°ΡΠ΅Π»Ρ Π·Π°Π²ΠΈΡΠΈΡ ΠΎΡ ΠΊΠ»Π°ΡΡΠ° ΠΌΠ°ΡΠ΅ΡΠΈΠ°Π»Π°. ΠΠ»Ρ ΠΆΠΈΠ»ΠΎΠ³ΠΎ ΠΏΠΎΠΌΠ΅ΡΠ΅Π½ΠΈΡ, Π² ΠΊΠΎΡΠΎΡΠΎΠΌ ΠΈΠΌΠ΅Π΅ΡΡΡ ΡΠΎΠ²Π½ΠΎΠ΅ ΠΎΡΠ½ΠΎΠ²Π°Π½ΠΈΠ΅, ΠΈ ΠΏΡΠ΅Π΄ΠΏΠΎΠ»Π°Π³Π°Π΅ΡΡΡ Π½ΠΈΠ·ΠΊΠΈΠΉ ΡΡΠΎΠ²Π΅Π½Ρ Π½Π°Π³ΡΡΠ·ΠΊΠΈ, ΠΏΠΎΠ΄ΠΎΠΉΠ΄Π΅Ρ ΠΌΠ°ΡΠ΅ΡΠΈΠ°Π» 21, 22 ΠΈ 23 ΠΊΠ»Π°ΡΡΠ°, ΠΏΡΠΈ ΡΠΎΠ»ΡΠΈΠ½Π΅ 6 ΠΈΠ»ΠΈ 7 ΠΌΠΌ.
ΠΠΎΠ»ΠΈΡΠ΅ΡΡΠ²ΠΎ Π½Π΅ΠΎΠ±Ρ ΠΎΠ΄ΠΈΠΌΠΎ Π»Π°ΠΌΠΈΠ½Π°ΡΠ° Π·Π°Π²ΠΈΡΠΈΡ ΠΎΡ ΡΠΏΠΎΡΠΎΠ±Π° ΠΊΠ»Π°Π΄ΠΊΠΈ. Π‘ΠΏΠ΅ΡΠΈΠ°Π»ΠΈΡΡΡ Π²ΡΠ΄Π΅Π»ΡΡΡ ΡΠ°ΠΊΠΈΠ΅ Π²ΠΈΠ΄Ρ ΡΠΊΠ»Π°Π΄ΠΊΠΈ:
- ΠΏΡΡΠΌΠΎΠΉ
- Π΄ΠΈΠ°Π³ΠΎΠ½Π°Π»ΡΠ½ΡΠΉ.
ΠΡΡ ΠΎΡΡΠ°Π»ΡΠ½ΡΠ΅ Π²ΠΈΠ΄Ρ, ΡΡΠΎ Π»ΠΈΡΡ ΡΠ°Π·Π½ΠΎΠ²ΠΈΠ΄Π½ΠΎΡΡΠΈ ΡΡΠΈΡ Π²Π°ΡΠΈΠ°Π½ΡΠΎΠ², ΠΊ ΠΏΡΠΈΠΌΠ΅ΡΡ, ΠΏΠΎ ΠΎΡΠ½ΠΎΡΠ΅Π½ΠΈΡ ΠΊ ΡΠ²Π΅ΡΡ:
- ΠΏΠ°ΡΠ°Π»Π»Π΅Π»ΡΠ½ΠΎ
- ΠΏΠ΅ΡΠΏΠ΅Π½Π΄ΠΈΠΊΡΠ»ΡΡΠ½ΠΎ.
Π ΡΠ°ΠΊΠΆΠ΅ ΠΏΠΎ ΡΠ°ΡΠΏΠΎΠ»ΠΎΠΆΠ΅Π½ΠΈΡ ΠΏΠ»Π°Π½ΠΎΠΊ ΠΏΠΎ ΠΎΡΠ½ΠΎΡΠ΅Π½ΠΈΡ Π΄ΡΡΠ³ ΠΊ Π΄ΡΡΠ³Ρ:
- ΠΏΡΠΎΡΡΠΎΠ΅ ΡΠ°ΡΠΏΠΎΠ»ΠΎΠΆΠ΅Π½ΠΈΠ΅ (ΡΠ°Π·Π±Π΅Π³ 10-20 ΡΠΌ)
- ΡΠ°Ρ ΠΌΠ°ΡΠ½ΠΎΠ΅ ΡΠ°ΡΠΏΠΎΠ»ΠΎΠΆΠ΅Π½ΠΈΠ΅ (ΡΠ°Π·Π±Π΅Π³ 50% ΠΏΡΠΎΡΡΠΆΠ΅Π½Π½ΠΎΡΡΠΈ ΠΏΠ°Π½Π΅Π»ΠΈ).
ΠΡΠΎΠΌΠ΅ ΡΡΠΎΠ³ΠΎ ΡΡΡΠ΅ΡΡΠ²ΡΠ΅Ρ ΡΠ·ΠΎΡΠ½ΡΠΉ ΡΠΏΠΎΡΠΎΠ± ΠΌΠΎΠ½ΡΠ°ΠΆΠ°. ΠΡΠΈ ΡΡΠΎΠΌ ΠΈΠ· ΠΏΠ°Π½Π΅Π»Π΅ΠΉ Π»Π°ΠΌΠΈΠ½Π°ΡΠ° ΡΠ°Π·Π»ΠΈΡΠ½ΡΡ ΡΠ²Π΅ΡΠΎΠ² ΡΠΎΠ·Π΄Π°Π΅ΡΡΡ ΡΠΈΡΡΠ½ΠΎΠΊ. Π’Π°ΠΊΠΎΠΉ Π²Π°ΡΠΈΠ°Π½Ρ ΡΠ²Π»ΡΠ΅ΡΡΡ ΡΠ°ΠΌΡΠΌ Π·Π°ΡΡΠ°ΡΠ½ΡΠΌ, ΠΈ ΠΎΡΡΡΠ΅ΡΡΠ²ΠΈΡΡ ΠΌΠΎΠ½ΡΠ°ΠΆ ΡΠΎΠ±ΡΡΠ²Π΅Π½Π½ΠΎΡΡΡΠ½ΠΎ Π²ΡΡΠ΄ Π»ΠΈ ΠΏΠΎΠ»ΡΡΠΈΡΡΡ, Π»ΡΡΡΠ΅ ΠΏΡΠΈΠ³Π»Π°ΡΠΈΡΡ ΡΠΏΠ΅ΡΠΈΠ°Π»ΠΈΡΡΠΎΠ². Π Π΅ΡΠ΅ ΠΊΡΠ°ΠΉΠ½Π΅ Π²Π°ΠΆΠ½ΡΠΉ ΠΌΠΎΠΌΠ΅Π½Ρ β Π±Π΅Π· ΡΠ°Π·Π±Π΅ΠΆΠΊΠΈ, Π½Π΅Π»ΡΠ·Ρ ΡΠΎΠ²Π΅ΡΡΠ°ΡΡ ΠΌΠΎΠ½ΡΠ°ΠΆ. ΠΠ»Ρ ΡΠΎΠ·Π΄Π°Π½ΠΈΡ ΠΊΠ²Π°Π΄ΡΠ°ΡΠΈΠΊΠΎΠ² ΠΈΠ»ΠΈ Β«Π΅Π»ΠΎΡΠΊΠΈΒ» ΠΈΠ· ΠΏΠ°Π½Π΅Π»Π΅ΠΉ Π»Π°ΠΌΠΈΠ½Π°ΡΠ° Π½ΡΠΆΠ½ΠΎ ΠΏΡΠΈΠ±Π°Π²ΠΈΡΡ ΠΊ ΡΠ°ΡΡΠ΅ΡΠ°ΠΌ 30% ΠΌΠ°ΡΠ΅ΡΠΈΠ°Π»Π°.
ΠΠ°ΠΈΠ±ΠΎΠ»Π΅Π΅ Π±ΡΠ΄ΠΆΠ΅ΡΠ½ΡΠΉ Π²Π°ΡΠΈΠ°Π½Ρ ΡΠΊΠ»Π°Π΄ΠΊΠΈ β ΡΡΠΎ ΠΏΡΡΠΌΠΎΠΉ. ΠΠ΅Π²Π·ΠΈΡΠ°Ρ Π½Π° Π½Π°ΠΏΡΠ°Π²Π»Π΅Π½ΠΈΠ΅ β Π²Π΄ΠΎΠ»Ρ Π»ΠΈΠ±ΠΎ ΠΏΠΎΠΏΠ΅ΡΠ΅ΠΊ ΠΏΠΎΠΌΠ΅ΡΠ΅Π½ΠΈΡ β Π»Π°ΠΌΠ΅Π»ΠΈ ΠΏΠΎΠ²ΡΠΎΡΡΡΡ ΠΎΠ±ΡΠ΅Π΅ Π½Π°ΠΏΡΠ°Π²Π»Π΅Π½ΠΈΠ΅ ΡΡΠ΅Π½. ΠΡΠΈ Π΄ΠΈΠ°Π³ΠΎΠ½Π°Π»ΡΠ½ΠΎΠΌ Π²Π°ΡΠΈΠ°Π½ΡΠ΅ Π½Π΅ΠΎΠ±Ρ ΠΎΠ΄ΠΈΠΌΠΎ ΠΊΡΠΏΠΈΡΡ Π½Π° 15-20% Π±ΠΎΠ»ΡΡΠ΅ ΠΌΠ°ΡΠ΅ΡΠΈΠ°Π»Π°. ΠΡΠΎΡ ΡΠΏΠΎΡΠΎΠ± ΠΎΠΏΡΠ°Π²Π΄ΡΠ²Π°Π΅Ρ Π²ΡΠ΅ Π·Π°ΡΡΠ°ΡΡ, Π΅ΡΠ»ΠΈ Π½ΡΠΆΠ½ΠΎ Π²ΠΈΠ·ΡΠ°Π»ΡΠ½ΠΎ ΡΠ°ΡΡΠΈΡΠΈΡΡ ΠΊΠΎΠΌΠ½Π°ΡΡ. Π ΡΠΎΠΆΠ°Π»Π΅Π½ΠΈΡ, Π½ΠΈ ΠΎΠ΄ΠΈΠ½ ΡΠΏΠΎΡΠΎΠ± ΡΠΊΠ»Π°Π΄ΠΊΠΈ Π½Π΅ ΠΎΠ±Ρ ΠΎΠ΄ΠΈΡΡΡ Π±Π΅Π· ΠΏΠΎΠ΄ΡΠ΅Π·ΠΊΠΈ. Π§ΡΠΎΠ±Ρ ΠΎΠΏΡΠ΅Π΄Π΅Π»ΠΈΡΡΡΡ Ρ Π²ΡΠ±ΠΎΡΠΎΠΌ ΡΠΊΠ»Π°Π΄ΠΊΠΈ ΠΌΠΎΠΆΠ½ΠΎ ΠΏΠΎΡΠΌΠΎΡΡΠ΅ΡΡ ΠΎΠ³ΡΠΎΠΌΠ½ΠΎΠ΅ ΠΊΠΎΠ»ΠΈΡΠ΅ΡΡΠ²ΠΎ ΡΠΎΡΠΎ Π² ΠΈΠ½ΡΠ΅ΡΠ½Π΅ΡΠ΅.
ΠΠΎΡΠ»Π΅Π΄ΠΎΠ²Π°ΡΠ΅Π»ΡΠ½ΠΎΡΡΡ Π²ΡΡΠΈΡΠ»Π΅Π½ΠΈΠΉ
ΠΠ° ΠΊΠ°ΠΆΠ΄ΠΎΠΉ ΠΏΠ°ΡΠΊΠ΅ ΡΠΊΠ°Π·Π°Π½Π° ΠΎΠΏΡΠ΅Π΄Π΅Π»Π΅Π½Π½Π°Ρ ΠΏΠ»ΠΎΡΠ°Π΄Ρ Π»Π°ΠΌΠΈΠ½Π°ΡΠ° Ρ ΠΏΠΎΠ³ΡΠ΅ΡΠ½ΠΎΡΡΡΡ 10-20 ΡΠ°Π½ΡΠΈΠΌΠ΅ΡΡΠΎΠ². ΠΠΎΡΡΠΎΠΌΡ Π½ΡΠΆΠ½ΠΎ Π²ΡΠ΅Π³Π΄Π° ΠΏΡΠΈΠΎΠ±ΡΠ΅ΡΠ°ΡΡ Π΅Π³ΠΎ ΡΡΡΡ Π±ΠΎΠ»ΡΡΠ΅.
ΠΠΎΠ³Π΄Π° ΠΊΠΎΠΌΠ½Π°ΡΠ° ΠΏΡΡΠΌΠΎΡΠ³ΠΎΠ»ΡΠ½ΠΎΠΉ ΠΈΠ»ΠΈ ΠΊΠ²Π°Π΄ΡΠ°ΡΠ½ΠΎΠΉ ΡΠΎΡΠΌΡ, ΡΠΎ Π½ΡΠΆΠ½ΠΎ ΠΏΡΠΎΡΡΠΎ ΡΠΌΠ½ΠΎΠΆΠΈΡΡ Π΄Π»ΠΈΠ½Ρ Π½Π° ΡΠΈΡΠΈΠ½Ρ. ΠΠΎΠ»ΡΡΠ΅Π½Π½Π°Ρ Π²Π΅Π»ΠΈΡΠΈΠ½Π° ΠΈΠ·ΠΌΠ΅ΡΡΠ΅ΡΡΡ Π² ΠΊΠ²Π°Π΄ΡΠ°ΡΠ½ΡΡ
ΠΌΠ΅ΡΡΠ°Ρ
(ΠΌ2) ΠΈ Π½Π°Π·ΡΠ²Π°Π΅ΡΡΡ ΠΏΠ»ΠΎΡΠ°Π΄ΡΡ ΠΊΠΎΠΌΠ½Π°ΡΡ. ΠΠ΄Π½Π°ΠΊΠΎ ΠΎΠ½Π° Π½Π΅ ΡΠ²Π»ΡΠ΅ΡΡΡ ΡΠ΅Π°Π»ΡΠ½ΠΎΠΉ ΠΏΠ»ΠΎΡΠ°Π΄ΡΡ, ΠΏΠΎΡΠΎΠΌΡ ΡΡΠΎ ΡΠ°ΡΡΠΎ ΠΏΡΠΈΡΡΡΡΡΠ²ΡΡΡ Π½ΠΈΡΠΈ, ΠΎΠ±Ρ
ΠΎΠ΄Ρ ΡΡΡΠ±, ΠΈΠ½ΠΎΠ³Π΄Π° ΠΈΠΌΠ΅ΡΡΡΡ ΠΏΠΎΡΠΎΠ³ΠΈ, Π²ΡΡ
ΠΎΠ΄Ρ Π½Π° Π»ΠΎΠ΄ΠΆΠΈΡ ΠΈΠ» ΡΠ΅ΡΡΠ°ΡΡ. ΠΡΠ΅ ΡΡΠΈ Π½ΡΠ°Π½ΡΡ ΡΠΎΠΆΠ΅ Π½ΡΠΆΠ½ΠΎ ΡΡΠ΅ΡΡΡ ΠΏΡΠΈ ΡΠ°ΡΡΠ΅ΡΠ°Ρ
.
ΠΡΠ΅Π½Ρ ΡΠ΄ΠΎΠ±Π΅Π½, ΠΊΠΎΠ½Π΅ΡΠ½ΠΎ, ΠΎΠ½Π»Π°ΠΉΠ½ β ΠΊΠ°Π»ΡΠΊΡΠ»ΡΡΠΎΡ, ΠΎΠ΄Π½Π°ΠΊΠΎ ΠΎΠ½ Π²ΡΠ΅Π³Π΄Π° Π±ΡΠ΄Π΅Ρ Π΄Π°Π²Π°ΡΡ ΠΏΠΎΠΊΠ°Π·Π°Π½ΠΈΡ Ρ ΠΏΠΎΠ³ΡΠ΅ΡΠ½ΠΎΡΡΡΡ. Π ΠΏΡΠΈ ΡΠΎΡΡΠ°Π²Π»Π΅Π½ΠΈΠΈ ΠΏΠΎΠ΄ΡΠΎΠ±Π½ΠΎΠΉ ΡΡ Π΅ΠΌΡ ΡΠΊΠ»Π°Π΄ΠΊΠΈ ΡΠ²ΠΎΠΈΠΌΠΈ ΡΡΠΊΠ°ΠΌΠΈ, Π²Ρ Π±ΡΠ΄Π΅ΡΠ΅ ΡΠΎΡΠ½ΠΎ Π·Π½Π°ΡΡ Π² ΠΊΠ°ΠΊΠΎΠΌ ΠΌΠ΅ΡΡΠ΅ ΠΈ ΠΊΠ°ΠΊΠ°Ρ ΠΏΠ°Π½Π΅Π»Ρ Π΄ΠΎΠ»ΠΆΠ½Π° Π±ΡΡΡ ΡΠ»ΠΎΠΆΠ΅Π½Π°. Π‘ΠΏΠ΅ΡΠΈΠ°Π»ΠΈΡΡΡ ΡΠΎΠ²Π΅ΡΡΡΡ ΡΠΎΡΡΠ°Π²ΠΈΡΡ ΠΏΡΠ΅Π΄Π²Π°ΡΠΈΡΠ΅Π»ΡΠ½ΠΎ ΡΠ΅ΡΡΠ΅ΠΆ ΠΊΠΎΠΌΠ½Π°ΡΡ ΠΈ Π²Π°ΡΠΈΠ°Π½ΡΠ° ΡΠΊΠ»Π°Π΄ΠΊΠΈ. Π ΡΡ Π΅ΠΌΠ΅ Π½ΡΠΆΠ½ΠΎ ΠΎΡΠΌΠ΅ΡΠΈΡΡ Π²ΡΠ΅ ΠΎΡΠΎΠ±Π΅Π½Π½ΠΎΡΡΠΈ, Π½Π°ΠΏΡΠΈΠΌΠ΅Ρ, Π½Π΅ΡΡΠ°Π½Π΄Π°ΡΡΠ½ΡΡ ΠΊΠΎΠ½ΡΠΈΠ³ΡΡΠ°ΡΠΈΡ ΠΊΠΎΠΌΠ½Π°ΡΡ, Π΄Π²Π΅ΡΠ½ΡΠ΅ ΠΏΡΠΎΠ΅ΠΌΡ, ΡΡΡΠΏΠ΅Π½ΡΠΊΠΈ, Π²ΡΡΡΡΠΏΡ ΠΎΡΠΎΠΏΠΈΡΠ΅Π»ΡΠ½ΡΡ ΡΡΡΠ± ΠΈ Π΄ΡΡΠ³ΠΎΠ΅. ΠΠ΅ΡΠ°Π»ΡΠ½Π°Ρ ΡΡ Π΅ΠΌΠ° ΠΏΠΎΠ·Π²ΠΎΠ»ΠΈΡ ΡΠ°ΡΡΠΌΠΎΡΡΠ΅ΡΡ Π²ΡΠ΅ ΠΎΡΠΎΠ±Π΅Π½Π½ΠΎΡΡΠΈ Π΄Π°Π»ΡΠ½Π΅ΠΉΡΠ΅ΠΉ ΡΠ°Π±ΠΎΡΡ ΠΈ ΠΏΡΠΈΠ±Π°Π²ΠΈΡΡ ΠΈΠ»ΠΈ ΡΠ±Π°Π²ΠΈΡΡ Π»Π°ΠΌΠΈΠ½Π°Ρ Π² ΡΡΠΈΡ ΠΌΠ΅ΡΡΠ°Ρ .
Π§Π°ΡΠ΅ Π²ΡΠ΅Π³ΠΎ Π»Π°ΠΌΠΈΠ½Π°Ρ ΠΏΡΠΎΠ΄Π°Π΅ΡΡΡ ΡΠ΅Π»ΡΠΌΠΈ ΠΏΠ°ΡΠΊΠ°ΠΌΠΈ. Π‘ΠΊΠΎΠ»ΡΠΊΠΎ Π² ΠΏΠ°ΡΠΊΠ΅ Π»Π°ΠΌΠΈΠ½Π°ΡΠ°? ΠΠ° ΠΏΠ°ΡΠΊΠ΅ Π΅ΡΡΡ Π²ΡΡ Π½Π΅ΠΎΠ±Ρ ΠΎΠ΄ΠΈΠΌΠ°Ρ ΠΈΠ½ΡΠΎΡΠΌΠ°ΡΠΈΡ, Π½Π°ΠΏΡΠΈΠΌΠ΅Ρ, ΠΏΠ»ΠΎΡΠ°Π΄Ρ, ΠΊΠΎΡΠΎΡΡΡ ΠΌΠΎΠΆΠ½ΠΎ ΠΏΠΎΠΊΡΡΡΡ, ΠΈΠ»ΠΈ ΠΊΠΎΠ»ΠΈΡΠ΅ΡΡΠ²ΠΎ ΡΡΡΠΊ. ΠΠ΄Π½Π°ΠΊΠΎ ΠΏΠΎΠΌΠ½ΠΈΡΠ΅, ΡΡΠΎ ΡΠΊΠ°Π·ΡΠ²Π°Π΅ΠΌΠ°Ρ ΠΏΠ»ΠΎΡΠ°Π΄Ρ ΡΠ°ΡΡΡΠΈΡΠ°Π½Π° Π΄Π»Ρ ΠΏΡΡΠΌΠΎΠ³ΠΎ ΠΌΠ΅ΡΠΎΠ΄Π° ΠΌΠΎΠ½ΡΠ°ΠΆΠ°. ΠΡΠ»ΠΈ Π²Ρ ΡΠΎΠ±ΠΈΡΠ°Π΅ΡΠ΅ΡΡ ΡΠΊΠ»Π°Π΄ΡΠ²Π°ΡΡ Π»Π°ΠΌΠΈΠ½Π°Ρ Π΄ΡΡΠ³ΠΈΠΌ ΠΌΠ΅ΡΠΎΠ΄ΠΎΠΌ, ΡΠΎ ΡΠ°ΡΡΡΠΈΡΡΠ²Π°ΡΡ ΠΊΠΎΠ»ΠΈΡΠ΅ΡΡΠ²ΠΎ ΠΌΠ°ΡΠ΅ΡΠΈΠ°Π»Π° ΠΏΠΎ ΠΏΠ»ΠΎΡΠ°Π΄ΠΈ ΡΠΎΠ³Π»Π°ΡΠ½ΠΎ ΠΈΠ½ΡΠΎΡΠΌΠ°ΡΠΈΠΈ Π½Π° ΡΠΏΠ°ΠΊΠΎΠ²ΠΊΠ΅ β ΠΎΡΠΈΠ±ΠΊΠ°.
ΠΡΠ°ΠΊ, ΡΠΊΠΎΠ»ΡΠΊΠΎ ΠΆΠ΅ ΠΏΠ°ΡΠ΅ΠΊ Π½ΡΠΆΠ½ΠΎ ΠΊΡΠΏΠΈΡΡ? ΠΠ΅ΠΎΠ±Ρ ΠΎΠ΄ΠΈΠΌΠΎ ΠΏΠΎΠ»ΡΡΠ΅Π½Π½ΡΡ ΠΏΠΎ Π²Π°ΡΠΈΠΌ ΡΠ°ΡΡΠ΅ΡΠ°ΠΌ ΠΏΠ»ΠΎΡΠ°Π΄Ρ (Ρ ΡΡΠ΅ΡΠΎΠΌ ΠΏΡΠΈΠ±Π°Π²ΠΎΠΊ) ΡΠ°Π·Π΄Π΅Π»ΠΈΡΡ Π½Π° ΠΏΠ»ΠΎΡΠ°Π΄Ρ, ΡΠΊΠ°Π·Π°Π½Π½ΡΡ Π½Π° ΠΏΠ°ΡΠΊΠ΅. Π§ΠΈΡΠ»ΠΎ, ΠΊΠΎΡΠΎΡΠΎΠ΅ Ρ Π²Π°Ρ ΠΏΠΎΠ»ΡΡΠΈΠ»ΠΎΡΡ, ΠΎΠΊΡΡΠ³Π»ΠΈΡΠ΅ Π² ΡΡΠΎΡΠΎΠ½Ρ Π±ΠΎΠ»ΡΡΠ΅Π³ΠΎ Π·Π½Π°ΡΠ΅Π½ΠΈΡ. ΠΠΎ ΡΡΠΎ ΠΎΡΠ½ΠΎΡΠΈΡΡΡ ΡΠΎΠ»ΡΠΊΠΎ ΠΊ ΠΏΡΡΠΌΠΎΠΌΡ ΡΠΏΠΎΡΠΎΠ±Ρ ΡΠΊΠ»Π°Π΄ΠΊΠΈ. ΠΡΠ»ΠΈ Π²Ρ Π±ΡΠ΄Π΅ΡΠ΅ ΠΊΠ»Π°ΡΡΡ Π»Π°ΠΌΠΈΠ½Π°Ρ ΠΏΠΎ Π΄ΠΈΠ°Π³ΠΎΠ½Π°Π»ΠΈ, ΠΏΡΠΈΠ±Π°Π²ΡΡΠ΅ Π½Π΅ ΠΌΠ΅Π½Π΅Π΅ 20%.
ΠΡΠΎΠΌΠ΅ ΡΡΠΎΠ³ΠΎ Π²ΠΎ Π²ΡΠ΅ΠΌΡ ΡΠΎΡΡΠ°Π²Π»Π΅Π½ΠΈΡ ΡΡ Π΅ΠΌΡ Π½Π΅ Π·Π°Π±ΡΠ΄ΡΡΠ΅ ΠΏΡΠΎ Π·Π°Π·ΠΎΡΡ Π΄Π»Ρ ΡΠ΅ΠΌΠΏΠ΅ΡΠ°ΡΡΡΠ½ΠΎΠ³ΠΎ ΡΠ°ΡΡΠΈΡΠ΅Π½ΠΈΡ. ΠΠ½ΠΈ ΡΠΎΡΡΠ°Π²Π»ΡΡΡ 8-12 ΠΌΠΌ ΠΈ ΠΎΡΡΠ°Π²Π»ΡΡΡΡΡ Π½Π΅ ΡΠΎΠ»ΡΠΊΠΎ ΠΏΠΎ ΠΏΠ΅ΡΠΈΠΌΠ΅ΡΡΡ Π²ΡΠ΅Ρ ΡΡΠ΅Π½, Π½ΠΎ ΠΈ Π² ΡΠ΅Ρ ΠΌΠ΅ΡΡΠ°Ρ , Π³Π΄Π΅ ΠΎΠ±Ρ ΠΎΠ΄ΡΡΡΡ Π²ΡΡΡΡΠΏΡ. ΠΠΎΡΠ»Π΅ ΠΌΠΎΠ½ΡΠ°ΠΆΠ° ΠΎΠ½ΠΈ Π·Π°ΠΊΡΡΠ²Π°ΡΡΡΡ ΠΏΠ»ΠΈΠ½ΡΡΡΠΎΠΌ.
Π‘ΠΊΠΎΠ»ΡΠΊΠΎ Π»Π°ΠΌΠΈΠ½Π°ΡΠ° Π² ΠΊΠ²Π°Π΄ΡΠ°ΡΠ½ΠΎΠΌ ΠΌΠ΅ΡΡΠ΅?
ΠΡΠΎ, ΠΏΠΎΠΆΠ°Π»ΡΠΉ, ΠΎΠ΄ΠΈΠ½ ΠΈΠ· ΡΠ°ΠΌΡΡ
ΡΠ°ΡΠΏΡΠΎΡΡΡΠ°Π½Π΅Π½Π½ΡΡ
Π²ΠΎΠΏΡΠΎΡΠΎΠ².
Π Π°Π·Π½ΡΠ΅ ΠΏΡΠΎΠΈΠ·Π²ΠΎΠ΄ΠΈΡΠ΅Π»ΠΈ ΠΏΡΠ΅Π΄Π»Π°Π³Π°ΡΡ ΡΠ°Π·Π½ΠΎΠ΅ ΠΊΠΎΠ»ΠΈΡΠ΅ΡΡΠ²ΠΎ Π΄ΠΎΡΠΎΠΊ Π² ΠΎΠ΄Π½ΠΎΠΉ ΠΏΠ°ΡΠΊΠ΅. ΠΡΠΌΠ΅ΡΠΈΠΌ ΡΠ°ΠΌΡΠ΅ Π²ΠΎΡΡΡΠ΅Π±ΠΎΠ²Π°Π½Π½ΡΠ΅ ΠΌΠ°ΡΠΊΠΈ Π½Π° ΡΠΎΡΡΠΈΠΉΡΠΊΠΎΠΌ ΡΡΠ½ΠΊΠ΅:
- ΡΠΈΡΠΌΠ° KRONOSTAR ΠΏΡΠΎΠΈΠ·Π²ΠΎΠ΄ΠΈΡ ΠΏΠ°Π½Π΅Π»ΠΈ 1380 ΠΌΠΌ Π½Π° 193 ΠΌΠΌ. ΠΠΎΠ»ΡΡΠ°Π΅ΡΡΡ, ΡΡΠΎ ΠΎΠ΄Π½Π° ΠΏΠ°Π½Π΅Π»Ρ Π±ΡΠ΄Π΅Ρ Π·Π°Π½ΠΈΠΌΠ°ΡΡ 0,266 ΠΌ ΠΊΠ². Π§ΠΈΡΠ»ΠΎ Π΄ΠΎΡΠΎΠΊ ΡΠ°Π·Π½ΠΎΠ΅ Π² ΠΏΠ°ΡΠΊΠ°Ρ ΠΈΠ· ΡΠ°Π·Π½ΡΡ ΠΊΠΎΠ»Π»Π΅ΠΊΡΠΈΠΉ. Π ΠΏΡΠΈΠΌΠ΅ΡΡ, Π²ΡΡ Π»ΠΈΠ½Π΅ΠΉΠΊΠ° Prime ΡΠΎΠ΄Π΅ΡΠΆΠΈΡ 9 ΠΏΠ°Π½Π΅Π»Π΅ΠΉ Π² ΡΠΏΠ°ΠΊΠΎΠ²ΠΊΠ΅, Π·Π½Π°ΡΠΈΡ, ΠΏΠ»ΠΎΡΠ°Π΄Ρ ΡΠΏΠ°ΠΊΠΎΠ²ΠΊΠΈ ΡΠΎΡΡΠ°Π²Π»ΡΠ΅Ρ 2,39 ΠΌ ΠΊΠ²
- ΠΌΠ°ΡΠΊΠ° KRONOSPAN β ΡΡΠΎ ΠΏΠ°Π½Π΅Π»ΠΈ 1285 ΠΌΠΌ Π½Π° 192 ΠΌΠΌ. ΠΠΈΠ½Π΅ΠΉΠΊΠ° Comfort ΠΈΠΌΠ΅Π΅Ρ 10 ΠΏΠ°Π½Π΅Π»Π΅ΠΉ Π² ΡΠΏΠ°ΠΊΠΎΠ²ΠΊΠ΅ ΠΈ Π·Π°Π½ΠΈΠΌΠ°Π΅Ρ 2,46 ΠΌ ΠΊΠ²
- TARKETT β ΠΎΡΠ΅Π½Ρ Π°Π²ΡΠΎΡΠΈΡΠ΅ΡΠ½Π°Ρ ΠΊΠΎΠΌΠΏΠ°Π½ΠΈΡ. ΠΠ½Π° ΠΏΡΠΎΠΈΠ·Π²ΠΎΠ΄ΠΈΡ ΠΏΠ°Π½Π΅Π»ΠΈ Ρ Π΄Π»ΠΈΠ½ΠΎΠΉ 1292 ΠΌΠΌ, Π° Π²ΠΎΡ ΡΠΈΡΠΈΠ½Π° ΠΊΠΎΠ»Π΅Π±Π»Π΅ΡΡΡ ΠΎΡ 136 ΠΌΠΌ Π΄ΠΎ 331 ΠΌΠΌ. ΠΠ»ΠΎΡΠ°Π΄Ρ ΡΠΎΠ²Π½ΠΎ 2 ΠΌ ΠΊΠ Π·Π°Π½ΠΈΠΌΠ°ΡΡ ΠΊΠΎΠ»Π»Π΅ΠΊΡΠΈΠΈ Woodstock, Robinson, Holiday
- EGGER β ΠΈΠ½ΡΠ΅ΡΠ΅ΡΠ½Π°Ρ Π°Π²ΡΡΡΠ°Π»ΠΈΠΉΡΠΊΠ°Ρ ΡΠΈΡΠΌΠ°, ΠΏΡΠΎΠΈΠ·Π²ΠΎΠ΄ΡΡΠ°Ρ ΠΏΠ°Π½Π΅Π»ΠΈ ΡΠΈΡΠΈΠ½ΠΎΠΉ 193 ΠΌΠΌ. ΠΡΡΡ Π½Π΅ ΡΡΠ°Π½Π΄Π°ΡΡΠ½ΡΠ΅ ΠΏΡΠ΅Π΄Π»ΠΎΠΆΠ΅Π½ΠΈΡ, Π½Π°ΠΏΡΠΈΠΌΠ΅Ρ, 8 ΠΏΠ°Π½Π΅Π»Π΅ΠΉ Megafloor M2 ΠΈ Floorline Block Modern ΠΎΡΠ»ΠΈΡΠ°ΡΡΡΡ Π΄Π»ΠΈΠ½ΠΎΠΉ 637 ΠΌΠΌ ΠΏΡΠΈ ΡΠΈΡΠΈΠ½Π΅ 330 ΠΌΠΌ. Π’Π°ΠΊΠ°Ρ ΡΠΏΠ°ΠΊΠΎΠ²ΠΊΠ° Π±ΡΠ΄Π΅Ρ ΡΠΎΠ΄Π΅ΡΠΆΠ°ΡΡ 1,68 ΠΌ ΠΊΠ²
- QUICK STEP ΠΌΠΎΠΆΠ½ΠΎ Π½Π°Π·Π²Π°ΡΡ Π·Π°ΠΊΠΎΠ½ΠΎΠ΄Π°ΡΠ΅Π»Π΅ΠΌ ΠΌΠΎΠ΄Ρ Π² ΠΈΠ·Π³ΠΎΡΠΎΠ²Π»Π΅Π½ΠΈΠΈ Π»Π°ΠΌΠΈΠ½Π°ΡΠ°. ΠΠΌΠ΅Π½Π½ΠΎ ΡΡΠ° ΠΊΠΎΠΌΠΏΠ°Π½ΠΈΡ Π²ΡΠΏΡΡΠΊΠ°Π΅Ρ ΠΌΠ°ΡΠΊΡ Quadra, ΠΊΠΎΡΠΎΡΠ°Ρ ΠΈΠΌΠΈΡΠΈΡΡΠ΅Ρ ΠΏΠ»ΠΈΡΠΊΡ. Π Π°Π·ΠΌΠ΅ΡΡ ΠΎΠ΄Π½ΠΎΠΉ ΠΏΠ°Π½Π΅Π»ΠΈ 394 Π½Π° 394 ΠΌΠΌ, Π² ΡΠΏΠ°ΠΊΠΎΠ²ΠΊΠ΅ 10 ΡΡΡΠΊ.
Π‘ΡΠΎΠΈΡ ΠΎΡΠΌΠ΅ΡΠΈΡΡ, ΡΡΠΎ Π²ΡΠ΅ ΡΠ°Π·ΠΌΠ΅ΡΡ ΡΠΊΠ°Π·Π°Π½Π½Ρ ΠΏΡΠΈ ΠΎΠΊΡΡΠ³Π»Π΅Π½ΠΈΠΈ ΠΊ ΠΌΠ΅Π½ΡΡΠ΅ΠΌΡ Π·Π½Π°ΡΠ΅Π½ΠΈΡ. ΠΠΎΠ³Π΄Π° Π½Π΅ΠΎΠ±Ρ ΠΎΠ΄ΠΈΠΌΠΎ Π½Π΅ΡΠΊΠΎΠ»ΡΠΊΠΎ ΠΊΠΎΠΌΠΏΠ»Π΅ΠΊΡΠΎΠ², ΡΠΎ ΡΡΠΈΠΌ Π½ΡΠ°Π½ΡΠΎΠΌ ΠΌΠΎΠΆΠ½ΠΎ ΠΏΡΠ΅Π½Π΅Π±ΡΠ΅ΡΡ. ΠΠ΄Π½Π°ΠΊΠΎ, ΠΊΠΎΠ³Π΄Π° ΠΏΠ»ΠΎΡΠ°Π΄Ρ ΠΏΠΎΠΊΡΡΡΠΈΡ Π±ΠΎΠ»Π΅Π΅ 50 ΠΌ ΠΊΠ² ΠΈ ΠΏΠΎΠ½Π°Π΄ΠΎΠ±ΠΈΡΡΡ 20-30 ΡΠΏΠ°ΠΊΠΎΠ²ΠΎΠΊ, ΡΠΎ ΠΎΠ±ΡΠ°Ρ ΠΏΠ»ΠΎΡΠ°Π΄Ρ Π±ΡΠ΄Π΅Ρ Π½Π°ΠΌΠ½ΠΎΠ³ΠΎ Π²ΡΡΠ΅ ΡΠ°ΡΡΠ΅ΡΠ½ΠΎΠΉ. ΠΠ½ΠΎΠ³Π΄Π° Π»ΠΈΡΠ½ΠΈΠΌΠΈ ΠΎΠΊΠ°Π·ΡΠ²Π°ΡΡΡΡ ΡΠ΅Π»ΡΠ΅ ΠΏΠ°ΡΠΊΠΈ.
ΠΠ°Π»ΡΠΊΡΠ»ΡΡΠΎΡ Π½Π°ΠΏΠΎΠ»ΡΠ½ΡΡ ΠΏΠΎΠΊΡΡΡΠΈΠΉ | ΠΡΠ΅Π½ΡΠΈΠΊ Π·Π°ΡΡΠ°Ρ Π½Π° Π½Π°ΠΏΠΎΠ»ΡΠ½ΠΎΠ΅ ΠΏΠΎΠΊΡΡΡΠΈΠ΅
Π£ΡΡΠ°Π½ΠΎΠ²ΠΊΠ° Π½ΠΎΠ²ΠΎΠ³ΠΎ ΠΏΠΎΠ»Π° Π² Π²Π°ΡΠ΅ΠΌ Π΄ΠΎΠΌΠ΅ ΠΌΠΎΠΆΠ΅Ρ ΡΡΠ°ΡΡ ΡΠ΅ΡΡΠ΅Π·Π½ΠΎΠΉ ΠΏΡΠΎΠ±Π»Π΅ΠΌΠΎΠΉ — Π΅ΡΠ»ΠΈ Π²Ρ Π½Π΅ ΠΈΡΠΏΠΎΠ»ΡΠ·ΡΠ΅ΡΠ΅ Π½Π°Ρ ΠΊΠ°Π»ΡΠΊΡΠ»ΡΡΠΎΡ Π½Π°ΠΏΠΎΠ»ΡΠ½ΠΎΠ³ΠΎ ΠΏΠΎΠΊΡΡΡΠΈΡ! ΠΠ΅Π·Π°Π²ΠΈΡΠΈΠΌΠΎ ΠΎΡ ΡΠΎΠ³ΠΎ, ΡΡΡΠΎΠΈΡΠ΅ Π»ΠΈ Π²Ρ Π΄ΠΎΠΌ ΡΠ²ΠΎΠ΅ΠΉ ΠΌΠ΅ΡΡΡ ΠΈ Π²ΡΠ±ΠΈΡΠ°Π΅ΡΠ΅ ΠΎΡΠ΄Π΅Π»ΠΊΡ ΠΏΠΎΠ»Π° ΠΈΠ»ΠΈ ΠΏΡΠΎΡΡΠΎ Π·Π°ΠΌΠ΅Π½ΡΠ΅ΡΠ΅ ΡΡΠ°ΡΡΠ΅ ΠΈ ΠΈΡΠΏΠΎΠ»ΡΠ·ΠΎΠ²Π°Π½Π½ΡΠ΅ ΠΏΠ°Π½Π΅Π»ΠΈ Π² ΠΊΠ²Π°ΡΡΠΈΡΠ΅, Π²Ρ Π½Π΅ΠΈΠ·Π±Π΅ΠΆΠ½ΠΎ ΡΡΠΎΠ»ΠΊΠ½Π΅ΡΠ΅ΡΡ Ρ ΠΎΠ΄Π½ΠΈΠΌΠΈ ΠΈ ΡΠ΅ΠΌΠΈ ΠΆΠ΅ ΠΏΡΠΎΠ±Π»Π΅ΠΌΠ°ΠΌΠΈ — ΠΈΠ·ΠΌΠ΅ΡΡΠ΅Ρ ΠΏΡΠΎΡΡΡΠ°Π½ΡΡΠ²ΠΎ ΠΈ ΠΎΡΠ΅Π½ΠΈΠ²Π°Π΅Ρ ΡΡΠΎΠΈΠΌΠΎΡΡΡ ΠΏΠΎΠ»ΠΎΠ² .
Π Ρ
ΠΎΡΡ ΡΠ°ΡΡΠ΅ΡΡ ΠΎΡΠ½ΠΎΡΠΈΡΠ΅Π»ΡΠ½ΠΎ ΠΏΡΠΎΡΡΡ, ΠΌΡ Π·Π½Π°Π΅ΠΌ, ΡΡΠΎ ΠΌΠ°ΡΠ΅ΠΌΠ°ΡΠΈΠΊΠ° — ΡΡΠΎ ΠΏΠΎΡΠ»Π΅Π΄Π½Π΅Π΅, ΡΠ΅ΠΌ Π²Ρ Ρ
ΠΎΡΠΈΡΠ΅ Π·Π°Π½ΠΈΠΌΠ°ΡΡΡΡ Π²ΠΎ Π²ΡΠ΅ΠΌΡ ΡΠ΅ΠΌΠΎΠ½ΡΠ°.
ΠΡ ΡΠΎΠ·Π΄Π°Π»ΠΈ ΡΡΠΎΡ ΠΊΠ°Π»ΡΠΊΡΠ»ΡΡΠΎΡ ΠΊΠ²Π°Π΄ΡΠ°ΡΠ½ΡΡ ΡΡΡΠΎΠ² Π΄Π»Ρ ΠΏΠΎΠ»Π°, ΡΡΠΎΠ±Ρ ΠΎΠ±Π»Π΅Π³ΡΠΈΡΡ ΠΌΠ°ΡΠ΅ΠΌΠ°ΡΠΈΡΠ΅ΡΠΊΠΈΠ΅ Π²ΡΡΠΈΡΠ»Π΅Π½ΠΈΡ. ΠΠ»Π°Π³ΠΎΠ΄Π°ΡΡ ΡΡΠΎΠΌΡ ΠΈΠ½ΡΡΡΡΠΌΠ΅Π½ΡΡ Π²Ρ ΠΌΠΎΠΆΠ΅ΡΠ΅ Π±ΡΡΡΡΠΎ ΠΎΡΠ΅Π½ΠΈΡΡ ΡΡΠΎΠΈΠΌΠΎΡΡΡ Π½Π°ΠΏΠΎΠ»ΡΠ½ΠΎΠ³ΠΎ ΠΏΠΎΠΊΡΡΡΠΈΡ ΠΈ ΡΠ°ΡΡΡΠΈΡΠ°ΡΡ, ΡΠΊΠΎΠ»ΡΠΊΠΎ Π½Π°ΡΡΠΈΠ»Π° ΠΈΠ· ΡΠ²Π΅ΡΠ΄ΡΡ ΠΏΠΎΡΠΎΠ΄ Π΄Π΅ΡΠ΅Π²Π°, Π²ΠΈΠ½ΠΈΠ»Π° ΠΈΠ»ΠΈ Π»Π°ΠΌΠΈΠ½Π°ΡΠ° Π²Π°ΠΌ Π½ΡΠΆΠ½ΠΎ ΡΡΡΠ°Π½ΠΎΠ²ΠΈΡΡ. Π‘ Π½Π°ΡΠ΅ΠΉ ΠΏΠΎΠΌΠΎΡΡΡ Π»ΡΠ±ΠΎΠΉ ΡΡΡΠΎΠΈΡΠ΅Π»ΡΠ½ΡΠΉ ΠΏΡΠΎΠ΅ΠΊΡ ΡΡΠ°Π½Π΅Ρ ΠΏΡΠΎΡΠ΅ ΠΏΡΠΎΡΡΠΎΠ³ΠΎ!
ΠΠΎΠ»Ρ ΡΠΆΠ΅ Π·Π°ΠΊΠΎΠ½ΡΠ΅Π½Ρ? Π’Π°ΠΊΠΆΠ΅ ΠΎΠ±ΡΠ°ΡΠΈΡΠ΅ Π²Π½ΠΈΠΌΠ°Π½ΠΈΠ΅ Π½Π° Π½Π°Ρ ΠΊΠ°Π»ΡΠΊΡΠ»ΡΡΠΎΡ ΠΎΠ±ΠΎΠ΅Π²!
Π‘ΠΊΠΎΠ»ΡΠΊΠΎ ΠΏΠΎΠ»ΠΎΠ² ΠΌΠ½Π΅ Π½ΡΠΆΠ½ΠΎ?
ΠΡΠ΅ΠΆΠ΄Π΅ ΡΠ΅ΠΌ ΠΏΠΎΠ΅Ρ Π°ΡΡ Π² Π±Π»ΠΈΠΆΠ°ΠΉΡΠΈΠΉ ΠΌΠ°Π³Π°Π·ΠΈΠ½ Home Depot, ΡΡΠΎΠ±Ρ ΠΊΡΠΏΠΈΡΡ Π½Π°ΠΏΠΎΠ»ΡΠ½ΠΎΠ΅ ΠΏΠΎΠΊΡΡΡΠΈΠ΅, Π²Ρ Π΄ΠΎΠ»ΠΆΠ½Ρ ΠΏΡΠΈΠΊΠΈΠ½ΡΡΡ, ΡΠΊΠΎΠ»ΡΠΊΠΎ ΠΌΠ°ΡΠ΅ΡΠΈΠ°Π»Π° Π²Π°ΠΌ Π΄Π΅ΠΉΡΡΠ²ΠΈΡΠ΅Π»ΡΠ½ΠΎ Π½ΡΠΆΠ½ΠΎ.Π‘Π΄Π΅Π»Π°ΡΡ ΡΡΠΎ ΠΌΠΎΠΆΠ½ΠΎ ΡΠ»Π΅Π΄ΡΡΡΠΈΠΌ ΠΎΠ±ΡΠ°Π·ΠΎΠΌ:
ΠΠ·ΠΌΠ΅ΡΡΡΠ΅ ΠΊΠΎΠΌΠ½Π°ΡΡ , Π² ΠΊΠΎΡΠΎΡΠΎΠΉ Π²Ρ ΡΠΎΠ±ΠΈΡΠ°Π΅ΡΠ΅ΡΡ ΡΡΡΠ°Π½ΠΎΠ²ΠΈΡΡ ΠΏΠΎΠ». ΠΡ ΡΠ΅ΠΊΠΎΠΌΠ΅Π½Π΄ΡΠ΅ΠΌ ΠΈΠ·ΠΌΠ΅ΡΠΈΡΡ Π΄Π»ΠΈΠ½Ρ ΠΈ ΡΠΈΡΠΈΠ½Ρ ΠΈ ΠΎΠΊΡΡΠ³Π»ΠΈΡΡ ΠΈΡ Π΄ΠΎ Π±Π»ΠΈΠΆΠ°ΠΉΡΠ΅Π³ΠΎ Π΄ΡΠΉΠΌΠ°. ΠΠ±ΡΠ·Π°ΡΠ΅Π»ΡΠ½ΠΎ ΡΡΠΈΡΡΠ²Π°ΠΉΡΠ΅ ΡΠ°ΠΌΡΡ ΡΠΈΡΠΎΠΊΡΡ ΡΠ°ΡΡΡ ΠΊΠΎΠΌΠ½Π°ΡΡ, Π΄Π°ΠΆΠ΅ Π΅ΡΠ»ΠΈ ΡΡΠ΅Π½Ρ Π½Π΅ ΡΠΎΠ²ΡΠ΅ΠΌ ΠΏΡΡΠΌΡΠ΅.
Π£ΠΌΠ½ΠΎΠΆΡΡΠ΅ ΡΠΈΡΠΈΠ½Ρ Π½Π° Π΄Π»ΠΈΠ½Ρ ΠΊΠΎΠΌΠ½Π°ΡΡ, ΡΡΠΎΠ±Ρ ΠΏΠΎΠ»ΡΡΠΈΡΡ ΠΊΠ²Π°Π΄ΡΠ°ΡΠ½ΡΡ ΡΡΡΠΎΠ² . ΠΡΠ»ΠΈ Π²Π°ΡΠ° ΠΊΠΎΠΌΠ½Π°ΡΠ° Π½Π΅ ΠΏΡΡΠΌΠΎΡΠ³ΠΎΠ»ΡΠ½Π°Ρ, Π° ΠΈΠΌΠ΅Π΅Ρ Π±ΠΎΠ»Π΅Π΅ Π½Π΅ΠΏΡΠ°Π²ΠΈΠ»ΡΠ½ΡΡ ΡΠΎΡΠΌΡ, Π²Ρ ΠΌΠΎΠΆΠ΅ΡΠ΅ ΠΏΠΎΠΏΡΠΎΠ±ΠΎΠ²Π°ΡΡ ΠΎΠΏΡΠ΅Π΄Π΅Π»ΠΈΡΡ Π΅Π΅ ΠΏΠ»ΠΎΡΠ°Π΄Ρ Ρ ΠΏΠΎΠΌΠΎΡΡΡ Π½Π°ΡΠ΅Π³ΠΎ ΠΊΠ°Π»ΡΠΊΡΠ»ΡΡΠΎΡΠ° ΡΡΠ°ΠΏΠ΅ΡΠΈΠΉ.
ΠΠ°ΠΊ ΡΠΎΠ»ΡΠΊΠΎ Π²Ρ ΠΎΠΏΡΠ΅Π΄Π΅Π»ΠΈΡΠ΅ ΠΏΠ»ΠΎΡΠ°Π΄Ρ ΠΊΠΎΠΌΠ½Π°ΡΡ, ΠΌΠΎΠΆΠ½ΠΎ ΠΏΡΠΈΡΡΡΠΏΠ°ΡΡ ΠΊ Π΄Π΅Π»Ρ — ΡΡΠΎ ΠΊΠ²Π°Π΄ΡΠ°ΡΠ½ΡΠ΅ ΠΌΠ΅ΡΡΡ ΠΌΠ°ΡΠ΅ΡΠΈΠ°Π»ΠΎΠ² Π΄Π»Ρ ΠΏΠΎΠ»Π°, ΠΊΠΎΡΠΎΡΡΠ΅ Π²Π°ΠΌ Π½ΡΠΆΠ½ΠΎ ΠΊΡΠΏΠΈΡΡ. ΠΡΠ»ΠΈ Π²Ρ Ρ ΠΎΡΠΈΡΠ΅ ΠΏΠΎΠΊΡΡΡΡ ΠΏΠΎΠ» ΠΊΠ²Π°Π΄ΡΠ°ΡΠ½ΡΠΌΠΈ ΡΠ»Π΅ΠΌΠ΅Π½ΡΠ°ΠΌΠΈ, Π²Π°ΠΌ ΠΌΠΎΠΆΠ΅Ρ ΠΏΡΠΈΠ³ΠΎΠ΄ΠΈΡΡΡΡ ΠΊΠ°Π»ΡΠΊΡΠ»ΡΡΠΎΡ GCF, Π΅ΡΠ»ΠΈ Π²Π°ΠΌ ΠΈΠ½ΡΠ΅ΡΠ΅ΡΠ½ΠΎ, ΠΊΠ°ΠΊΠΎΠ² ΠΌΠ°ΠΊΡΠΈΠΌΠ°Π»ΡΠ½ΠΎ Π²ΠΎΠ·ΠΌΠΎΠΆΠ½ΡΠΉ ΡΠ°Π·ΠΌΠ΅Ρ ΠΎΡΠ΄Π΅Π»ΡΠ½ΠΎΠΉ ΠΏΠ»ΠΈΡΠΊΠΈ.
ΠΡΠ»ΠΈ Π²Ρ Π³ΠΎΡΠΎΠ²Ρ ΠΏΡΠΈΠ»ΠΎΠΆΠΈΡΡ Π½Π΅ΠΌΠ½ΠΎΠ³ΠΎ Π±ΠΎΠ»ΡΡΠ΅ ΡΡΠΈΠ»ΠΈΠΉ Π΄Π»Ρ ΡΠ°ΡΡΠ΅ΡΠΎΠ², ΠΏΠΎΠ΄ΡΠΌΠ°ΠΉΡΠ΅ , ΡΠΊΠΎΠ»ΡΠΊΠΎ Π΄ΠΎΠΏΠΎΠ»Π½ΠΈΡΠ΅Π»ΡΠ½ΠΎΠ³ΠΎ ΠΌΠ°ΡΠ΅ΡΠΈΠ°Π»Π° Π½ΡΠΆΠ½ΠΎ ΠΊΡΠΏΠΈΡΡ Π΄Π»Ρ ΡΡΠ΅ΡΠ° ΠΎΡΡ ΠΎΠ΄ΠΎΠ² Π²ΠΎ Π²ΡΠ΅ΠΌΡ ΡΠΊΠ»Π°Π΄ΠΊΠΈ (Π½Π°ΠΏΡΠΈΠΌΠ΅Ρ, ΡΡΠΎΠ±Ρ ΡΠ±Π΅Π΄ΠΈΡΡΡΡ, ΡΡΠΎ ΡΠΈΡΡΠ½ΠΊΠΈ ΡΠΎΠ²ΠΏΠ°Π΄Π°ΡΡ Π½Π° Π²ΡΠ΅Ρ ΡΠ°ΡΡΡΡ ΠΏΠΎΠ»Π°).ΠΠ»Ρ ΡΡΠΎΠ³ΠΎ ΡΠ΅ΠΊΠΎΠΌΠ΅Π½Π΄ΡΠ΅ΠΌ Π΄ΠΎΠ±Π°Π²ΠΈΡΡ 5-10% ΠΎΡ ΠΎΠ±ΡΠ΅ΠΉ ΠΏΠ»ΠΎΡΠ°Π΄ΠΈ.
ΠΠ°ΠΊ ΠΈΠ·ΠΌΠ΅ΡΠΈΡΡ Π²Π°ΡΡ ΠΊΠΎΠΌΠ½Π°ΡΡ Π΄Π»Ρ Π»Π°ΠΌΠΈΠ½Π°ΡΠ° ΠΈΠ»ΠΈ Π΄Π΅ΡΠ΅Π²ΡΠ½Π½ΠΎΠ³ΠΎ ΠΏΠΎΠ»Π°
ΠΠΎΠ³Π΄Π° Π΄Π΅Π»ΠΎ Π΄ΠΎΡ
ΠΎΠ΄ΠΈΡ Π΄ΠΎ ΡΠΎΠ³ΠΎ, ΠΊΠ°ΠΊ ΠΈΠ·ΠΌΠ΅ΡΠΈΡΡ Π»Π°ΠΌΠΈΠ½Π°ΡΠ½ΡΠΉ ΠΏΠΎΠ», Π²Π°ΠΌ Π½ΡΠΆΠ½ΠΎ Π²ΡΠΏΠΎΠ»Π½ΠΈΡΡ Π²ΡΠ΅Π³ΠΎ ΠΏΠ°ΡΡ ΠΏΡΠΎΡΡΡΡ
ΡΠ°Π³ΠΎΠ².
ΠΡΠ»ΠΈ Π²Ρ Π·Π½Π°Π΅ΡΠ΅, ΠΊΠ°ΠΊ ΡΠ°ΡΡΡΠΈΡΠ°ΡΡ ΡΠ°Π·ΠΌΠ΅Ρ ΠΊΠΎΠΌΠ½Π°ΡΡ, ΠΈΠ·ΠΌΠ΅ΡΠ΅Π½ΠΈΠ΅ Π²Π°ΡΠ΅ΠΉ ΠΊΠΎΠΌΠ½Π°ΡΡ ΡΡΠ°Π½Π΅Ρ Π±ΡΡΡΡΡΠΌ ΠΈ Π»Π΅Π³ΠΊΠΈΠΌ ΠΏΡΠΎΡΠ΅ΡΡΠΎΠΌ, ΠΊΠΎΡΠΎΡΡΠΉ ΠΌΠΎΠΆΠ΅Ρ Π±ΡΡΡ ΡΡΡΠ΅ΠΊΡΠΈΠ²Π½ΠΎ Π²ΡΠΏΠΎΠ»Π½Π΅Π½ Π»ΡΠ±ΡΠΌ ΡΠ΅Π»ΠΎΠ²Π΅ΠΊΠΎΠΌ, Π±Π΅Π· Π½Π΅ΠΎΠ±Ρ
ΠΎΠ΄ΠΈΠΌΠΎΡΡΠΈ Π² ΡΡΠΎΠ»ΡΡΠ΅ ΠΈΠ»ΠΈ ΡΠ»Π΅ΡΠ°ΡΠ΅. Π£ΡΡΠ°Π½Π°Π²Π»ΠΈΠ²Π°Π΅ΡΠ΅ Π½ΠΎΠ²ΡΠΉ Π»Π°ΠΌΠΈΠ½Π°Ρ ΠΈΠ»ΠΈ ΠΊΠΎΠ²ΡΠΎΠ²ΠΎΠ΅ ΠΏΠΎΠΊΡΡΡΠΈΠ΅ ΠΈ Ρ
ΠΎΡΠΈΡΠ΅ ΡΠ·Π½Π°ΡΡ ΡΠ°Π·ΠΌΠ΅ΡΡ Π²Π°ΡΠ΅ΠΉ ΠΊΠΎΠΌΠ½Π°ΡΡ? ΠΠ΄Π΅ΡΡ, Π² Discount Flooring Depot, ΠΌΡ ΡΠΎΠ·Π΄Π°Π»ΠΈ ΠΏΡΠΎΡΡΠΎΠ΅ ΠΏΠΎΡΠ°Π³ΠΎΠ²ΠΎΠ΅ ΡΡΠΊΠΎΠ²ΠΎΠ΄ΡΡΠ²ΠΎ.
ΠΠ½ΡΡΡΡΠΌΠ΅Π½ΡΡ, ΠΊΠΎΡΠΎΡΡΠ΅ Π²Π°ΠΌ ΠΏΠΎΠ½Π°Π΄ΠΎΠ±ΡΡΡΡ:
ΠΠ»Ρ ΡΡΠΎΠΉ Π·Π°Π΄Π°ΡΠΈ Π²Π°ΠΌ ΠΏΠΎΠ½Π°Π΄ΠΎΠ±ΠΈΡΡΡ:
ΠΠ·ΠΌΠ΅ΡΠΈΡΠ΅Π»ΡΠ½Π°Ρ Π»Π΅Π½ΡΠ°
Π ΡΡΠΊΠ°
ΠΠΈΡΡ Π±ΡΠΌΠ°Π³ΠΈ
ΠΡΠ»ΠΈ ΠΌΠΎΠΆΠ΅ΡΠ΅ ΠΏΡΠΈΠ²Π»Π΅ΠΊΠΈΡΠ΅ ΠΏΠΎΠΌΠΎΡΠ½ΠΈΠΊΠ°, Π²ΡΠΎΡΠ°Ρ ΠΏΠ°ΡΠ° ΡΡΠΊ ΡΠ°ΠΊΠΆΠ΅ ΠΌΠΎΠΆΠ΅Ρ ΠΏΡΠΈΠ³ΠΎΠ΄ΠΈΡΡΡΡ Π΄Π»Ρ Π±ΠΎΠ»Π΅Π΅ ΡΠΎΡΠ½ΡΡ ΡΠ΅Π·ΡΠ»ΡΡΠ°ΡΠΎΠ².
ΠΠ°ΠΊ ΡΠ°ΡΡΡΠΈΡΠ°ΡΡ ΡΠ°Π·ΠΌΠ΅Ρ ΠΊΠΎΠΌΠ½Π°ΡΡ
ΠΠ²Π°Π΄ΡΠ°ΡΠ½ΡΠ΅ ΠΈΠ»ΠΈ ΠΏΡΡΠΌΠΎΡΠ³ΠΎΠ»ΡΠ½ΡΠ΅ ΠΊΠΎΠΌΠ½Π°ΡΡ
Π¨Π°Π³ 1
ΠΠΎΠ³Π΄Π° Π΄Π΅Π»ΠΎ Π΄ΠΎΡ ΠΎΠ΄ΠΈΡ Π΄ΠΎ ΠΈΠ·ΠΌΠ΅ΡΠ΅Π½ΠΈΡ Π»Π°ΠΌΠΈΠ½Π°ΡΠ°, ΠΈΠ·ΠΌΠ΅ΡΠ΅Π½ΠΈΠ΅ ΠΊΠ²Π°Π΄ΡΠ°ΡΠ½ΠΎΠΉ ΠΈΠ»ΠΈ ΠΏΡΡΠΌΠΎΡΠ³ΠΎΠ»ΡΠ½ΠΎΠΉ ΠΊΠΎΠΌΠ½Π°ΡΡ ΠΎΡΠ΅Π½Ρ ΠΏΡΠΎΡΡΠΎ.Π‘Π½Π°ΡΠ°Π»Π° Ρ ΠΏΠΎΠΌΠΎΡΡΡ ΡΡΠ»Π΅ΡΠΊΠΈ ΠΈΠ·ΠΌΠ΅ΡΡΡΠ΅ Π΄Π»ΠΈΠ½Ρ, Π° Π·Π°ΡΠ΅ΠΌ ΡΠΈΡΠΈΠ½Ρ ΠΊΠΎΠΌΠ½Π°ΡΡ. ΠΠ°ΡΠ΅ΠΌ ΡΠΌΠ½ΠΎΠΆΡΡΠ΅ ΡΡΠΈ ΡΠΈΡΠ»Π° Π΄ΡΡΠ³ Π½Π° Π΄ΡΡΠ³Π°, ΡΡΠΎΠ±Ρ ΠΏΠΎΠ»ΡΡΠΈΡΡ ΠΊΠ²Π°Π΄ΡΠ°ΡΠ½ΡΠ΅ ΠΌΠ΅ΡΡΡ. ΠΠ°ΠΏΡΠΈΠΌΠ΅Ρ, Π΅ΡΠ»ΠΈ Π²Π°ΡΠ° ΠΊΠΎΠΌΠ½Π°ΡΠ° ΠΈΠΌΠ΅Π΅Ρ ΡΠ°Π·ΠΌΠ΅Ρ 5 Ρ 5 ΠΌ, Ρ Π²Π°Ρ Π΅ΡΡΡ ΠΊΠΎΠΌΠ½Π°ΡΠ° ΠΏΠ»ΠΎΡΠ°Π΄ΡΡ 25 ΠΌΒ². (Π‘ΠΌ. ΠΠ·ΠΎΠ±ΡΠ°ΠΆΠ΅Π½ΠΈΠ΅ A).
Step 2
ΠΠΎΡΠ»Π΅ ΡΠΎΠ³ΠΎ, ΠΊΠ°ΠΊ Π²Ρ ΡΡΡΠ°Π½ΠΎΠ²ΠΈΠ»ΠΈ ΡΠ²ΠΎΠΈ ΡΠ°Π·ΠΌΠ΅ΡΡ, Π²Π°ΠΆΠ½ΠΎ Π΄ΠΎΠ±Π°Π²ΠΈΡΡ ΠΎΠΊΠΎΠ»ΠΎ 10% ΠΎΡ Π²Π°ΡΠ΅Π³ΠΎ ΠΎΠ±ΡΠ΅Π³ΠΎ ΡΠ°Π·ΠΌΠ΅ΡΠ° ΠΊ Π²Π°ΡΠ΅ΠΉ ΠΎΠ±ΡΠ΅ΠΉ ΠΏΠ»ΠΎΡΠ°Π΄ΠΈ Π² ΠΊΠ²Π°Π΄ΡΠ°ΡΠ½ΡΡ ΡΡΡΠ°Ρ , ΡΡΠΎΠ±Ρ Π»Π°ΠΌΠΈΠ½Π°Ρ ΠΈΠ»ΠΈ Π΄Π΅ΡΠ΅Π²ΡΠ½Π½ΡΠ΅ Π΄ΠΎΡΠΊΠΈ ΡΠ°ΡΠΏΠΎΠ»Π°Π³Π°Π»ΠΈΡΡ Π² ΡΠ°Ρ ΠΌΠ°ΡΠ½ΠΎΠΌ ΠΏΠΎΡΡΠ΄ΠΊΠ΅ ΠΏΡΠΈ ΠΈΡ ΡΠΊΠ»Π°Π΄ΠΊΠ΅. ΠΡΠΎ ΡΠ°ΠΊΠΆΠ΅ Π³Π°ΡΠ°Π½ΡΠΈΡΡΠ΅Ρ, ΡΡΠΎ Ρ Π²Π°Ρ Π±ΡΠ΄Π΅Ρ Π΄ΠΎΡΡΠ°ΡΠΎΡΠ½ΠΎ, ΡΡΠΎΠ±Ρ ΠΏΠΎΠΊΡΡΡΡ Π»ΡΠ±ΡΠ΅ Π½Π΅ΡΠΎΠ²Π½ΠΎΡΡΠΈ Π΄ΠΎΡΠΊΠΈ ΠΈ ΠΎΡΠΈΠ±ΠΊΠΈ ΡΠ΅Π·ΠΊΠΈ.
ΠΠΎΠΌΠ½Π°ΡΡ Π½Π΅ΠΏΡΠ°Π²ΠΈΠ»ΡΠ½ΠΎΠΉ ΡΠΎΡΠΌΡ
Π¨Π°Π³ 1
ΠΡΠ»ΠΈ Ρ Π²Π°Ρ Π΅ΡΡΡ Π½Π΅ΠΏΡΠ°Π²ΠΈΠ»ΡΠ½Π°Ρ ΠΈΠ»ΠΈ L-ΠΎΠ±ΡΠ°Π·Π½Π°Ρ ΠΊΠΎΠΌΠ½Π°ΡΠ°, ΡΠ°ΡΡΠΎ Π±ΡΠ²Π°Π΅Ρ ΠΏΠΎΠ»Π΅Π·Π½ΠΎ ΡΠΎΠ·Π΄Π°ΡΡ Π³ΡΡΠ±ΡΠΉ Π½Π°Π±ΡΠΎΡΠΎΠΊ ΠΏΠ»Π°Π½ΠΈΡΠΎΠ²ΠΊΠΈ, Π° Π·Π°ΡΠ΅ΠΌ ΠΎΠΏΡΠ΅Π΄Π΅Π»ΠΈΡΡ ΠΎΠ±Π»Π°ΡΡΠΈ, ΠΊΠΎΡΠΎΡΡΠ΅ ΠΌΠΎΠΆΠ½ΠΎ ΡΠ°Π·Π΄Π΅Π»ΠΈΡΡ Π½Π° Π°ΠΊΠΊΡΡΠ°ΡΠ½ΡΠ΅ ΡΠ΅ΠΊΡΠΈΠΈ, Π»Π΅Π³ΠΊΠΎ ΡΠΏΡΠ°Π²Π»ΡΠ΅ΠΌΡΠ΅ ΠΊΠ²Π°Π΄ΡΠ°ΡΡ ΠΈΠ»ΠΈ ΠΏΡΡΠΌΠΎΡΠ³ΠΎΠ»ΡΠ½ΠΈΠΊΠΈ.
(Π‘ΠΌ. ΠΠ·ΠΎΠ±ΡΠ°ΠΆΠ΅Π½ΠΈΠ΅ B).
Step 2
ΠΠ°ΠΆΠ΄ΡΡ ΡΠ΅ΠΊΡΠΈΠΎΠ½ΠΈΡΠΎΠ²Π°Π½Π½ΡΡ ΠΎΠ±Π»Π°ΡΡΡ ΠΌΠΎΠΆΠ½ΠΎ Π·Π°ΡΠ΅ΠΌ ΠΈΠ·ΠΌΠ΅ΡΠΈΡΡ ΠΏΠΎ ΡΠΈΡΠΈΠ½Π΅ ΠΈ ΡΠΈΡΠΈΠ½Π΅ Π΄Π»Ρ ΠΎΠΏΡΠ΅Π΄Π΅Π»Π΅Π½ΠΈΡ ΠΏΠ»ΠΎΡΠ°Π΄ΠΈ Π² ΠΊΠ²Π°Π΄ΡΠ°ΡΠ½ΡΡ ΡΡΡΠ°Ρ . ΠΠΎΡΠ»Π΅ ΡΠΎΠ³ΠΎ, ΠΊΠ°ΠΊ Π²Ρ ΡΠ΄Π΅Π»Π°Π΅ΡΠ΅ Π²ΡΠ΅ ΡΡΠΈ ΠΈΠ·ΠΌΠ΅ΡΠ΅Π½ΠΈΡ, ΠΏΡΠΎΡΡΠΎ ΡΠ»ΠΎΠΆΠΈΡΠ΅ ΠΈΡ Π²ΠΌΠ΅ΡΡΠ΅, ΡΡΠΎΠ±Ρ ΡΠ°ΡΡΡΠΈΡΠ°ΡΡ ΠΎΠ±ΡΠΈΠΉ ΡΠ°Π·ΠΌΠ΅Ρ Π²Π°ΡΠ΅ΠΉ ΠΊΠΎΠΌΠ½Π°ΡΡ.
Π§ΡΠΎΠ±Ρ ΠΏΠΎΠ»ΡΡΠΈΡΡ ΡΠΎΡΠ½ΡΠ΅ ΡΠ°ΡΡΠ΅ΡΡ, ΠΊΠΎΡΠΎΡΡΠ΅ Π²Π°ΠΌ Π½ΡΠΆΠ½Ρ, Π²Ρ ΡΠ°ΠΊΠΆΠ΅ ΠΌΠΎΠΆΠ΅ΡΠ΅ ΠΈΡΠΏΠΎΠ»ΡΠ·ΠΎΠ²Π°ΡΡ Π½Π°Ρ ΡΠ΄ΠΎΠ±Π½ΡΠΉ ΠΊΠ°Π»ΡΠΊΡΠ»ΡΡΠΎΡ Π΄Π»Ρ Π»Π°ΠΌΠΈΠ½Π°ΡΠ°.
ΠΠΎΠ΄ΡΠΊΠ°Π·ΠΊΠΈ ΠΈ ΠΏΠΎΠ΄ΡΠΊΠ°Π·ΠΊΠΈ:
β’ ΠΡΡΡΠ΅ Π²ΡΠ΅Π³ΠΎ ΠΈΠ·ΠΌΠ΅ΡΡΡΡ ΠΏΠΎΠ» Π² ΠΌΠ΅ΡΡΠ°Ρ , ΡΠ°ΠΊ ΠΊΠ°ΠΊ ΡΡΠΎ ΡΠΎΡΠΌΠ°Ρ, Π² ΠΊΠΎΡΠΎΡΠΎΠΌ Π²Π°ΡΠΈ ΠΏΠΎΠ»Ρ, Π²Π΅ΡΠΎΡΡΠ½ΠΎ, Π±ΡΠ΄ΡΡ ΠΏΡΠΎΠ΄Π°Π²Π°ΡΡΡΡ.
β’ ΠΡΠ΅Π³Π΄Π° ΠΏΠΎΠΌΠ½ΠΈΡΠ΅, ΡΡΠΎ ΠΊΠΎΡΡΡΠΈΡΠΈΠ΅Π½Ρ ΠΏΠΎΡΠ΅ΡΡ ΡΠΎΡΡΠ°Π²Π»ΡΠ΅Ρ 10%.
β’ ΠΠ·ΠΌΠ΅ΡΡΡΠ΅ ΠΏΠ»ΠΈΠ½ΡΡΡ ΠΈ Π΄Π²Π΅ΡΠ½ΡΠ΅ ΠΊΠΎΡΠΎΠ±ΠΊΠΈ, ΡΠ°ΠΊ ΠΊΠ°ΠΊ Π²Π°Ρ ΠΏΠΎΠ» Π±ΡΠ΄Π΅Ρ ΠΎΡΠ΄Π΅Π»Π°Π½ ΠΏΠΎΠ΄ Π½ΠΈΠΌΠΈ.
β’ ΠΠ΅ Π·Π°Π±ΡΠ²Π°ΠΉΡΠ΅ ΠΎ ΠΊΠ°ΠΌΠΈΠ½Π°Ρ , Π°Π»ΡΠΊΠΎΠ²Π°Ρ ΠΈ ΡΠΊΠ°ΡΠ°Ρ !
Π’Π΅ΠΏΠ΅ΡΡ Π²Ρ Π·Π½Π°Π΅ΡΠ΅, ΠΊΠ°ΠΊ ΡΠ°ΡΡΡΠΈΡΠ°ΡΡ ΡΠ°Π·ΠΌΠ΅Ρ ΠΊΠΎΠΌΠ½Π°ΡΡ, Π²Ρ Π·Π½Π°Π΅ΡΠ΅, ΠΊΠ°ΠΊ ΠΈΠ·ΠΌΠ΅ΡΠΈΡΡ Π»Π°ΠΌΠΈΠ½Π°Ρ, ΠΈ Π³ΠΎΡΠΎΠ²Ρ ΠΏΡΠΈΡΡΡΠΏΠΈΡΡ ΠΊ ΡΠ°Π±ΠΎΡΠ΅! ΠΡΠ΅, ΡΡΠΎ Π²Π°ΠΌ Π½ΡΠΆΠ½ΠΎ Π·Π½Π°ΡΡ ΠΎΠ± ΡΠΊΠ»Π°Π΄ΠΊΠ΅ Π»Π°ΠΌΠΈΠ½Π°ΡΠ°, ΠΌΠΎΠΆΠ½ΠΎ Π½Π°ΠΉΡΠΈ Π² Π½Π°ΡΠ΅ΠΌ ΡΡΠΊΠΎΠ²ΠΎΠ΄ΡΡΠ²Π΅ Β«ΠΠ°ΠΊ ΡΠΊΠ»Π°Π΄ΡΠ²Π°ΡΡ Π»Π°ΠΌΠΈΠ½Π°ΡΒ».
ΠΠ°ΠΊ ΠΈΠ·ΠΌΠ΅ΡΠΈΡΡ ΠΊΠΎΠ²Π΅Ρ Π΄Π»Ρ Π»Π΅ΡΡΠ½ΠΈΡΡ
Π¨Π°Π³ 1 — ΠΠ·ΠΌΠ΅ΡΡΡΠ΅ ΡΠΈΡΠΈΠ½Ρ ΡΡΡΠΏΠ΅Π½ΡΠΊΠΈ ΠΈ ΠΎΠΊΡΡΠ³Π»ΠΈΡΠ΅ Π΄ΠΎ Π±Π»ΠΈΠΆΠ°ΠΉΡΠ΅Π³ΠΎ ΡΠ°Π½ΡΠΈΠΌΠ΅ΡΡΠ°, ΡΡΠΎΠ±Ρ ΠΏΠΎΠ»ΡΡΠΈΡΡ W.
Π¨Π°Π³ 2 — ΠΡΠΏΠΎΠ»ΡΠ·ΡΡ Π³ΠΈΠ±ΠΊΡΡ ΠΈΠ·ΠΌΠ΅ΡΠΈΡΠ΅Π»ΡΠ½ΡΡ Π»Π΅Π½ΡΡ, ΠΈΠ·ΠΌΠ΅ΡΡΡΠ΅ Π²ΡΡΠΎΡΡ ΠΈ Π³Π»ΡΠ±ΠΈΠ½Ρ Π²Π°ΡΠ΅ΠΉ ΡΡΡΠΏΠ΅Π½ΡΠΊΠΈ. Π»Π΅ΡΡΠ½ΠΈΡΠ°, ΡΡΠΎΠ±Ρ ΠΏΠΎΠ»ΡΡΠΈΡΡ X.
Π¨Π°Π³ 3 — ΠΠΎΠ΄ΡΡΠΈΡΠ°ΠΉΡΠ΅ ΠΊΠΎΠ»ΠΈΡΠ΅ΡΡΠ²ΠΎ ΡΠ°Π³ΠΎΠ², ΠΊΠΎΡΠΎΡΠΎΠ΅ Π²Π°ΠΌ Π½ΡΠΆΠ½ΠΎ, ΡΡΠΎΠ±Ρ ΠΏΠΎΠΊΡΡΡΡ ΠΊΠΎΠ²Π΅Ρ, ΡΡΠΎΠ±Ρ ΠΏΠΎΠ»ΡΡΠΈΡΡ Y
Π¨Π°Π³ 4 — Π£ΠΌΠ½ΠΎΠΆΡΡΠ΅ X Π½Π° Y ΠΈ ΠΎΠΊΡΡΠ³Π»ΠΈΡΠ΅ Π±Π»ΠΈΠΆΠ°ΠΉΡΠΈΠΉ ΠΌΠ΅ΡΡ, ΡΡΠΎΠ±Ρ ΠΏΠΎΠ»ΡΡΠΈΡΡ Z.
Π¨Π°Π³ 5 — Π£ΠΌΠ½ΠΎΠΆΡΡΠ΅ Z Π½Π° W. ΡΡΠΎΠ±Ρ ΠΏΠΎΠ»ΡΡΠΈΡΡ ΠΊΠ²Π°Π΄ΡΠ°ΡΠ½ΡΠΉ ΠΌΠ΅ΡΡ ΡΠΎΠ³ΠΎ, ΡΠΊΠΎΠ»ΡΠΊΠΎ Π²Π°ΠΌ ΠΏΠΎΠ½Π°Π΄ΠΎΠ±ΠΈΡΡΡ ΠΊΠΎΠ²ΡΠ°.
ΠΠ Π£ΠΠΠ ΠΠΠΠΠΠΠ«Π Π£ΠΠΠΠΠΠΠ―
ΠΡΠ½ΠΎΠ²Π½ΡΠ΅ ΡΠΈΡΠ»Π° ΠΈ ΡΠ°ΡΡΠ΅ΡΡ Π΄Π»Ρ ΠΊΠΎΠΌΠΏΠΎΠ·ΠΈΡΠΎΠ²
ΠΠ ΠΠΠΠ§ΠΠΠΠ: ΠΡΠΎ Π²ΡΠ΅ Π΅ΡΠ΅ ΠΊΠΎΡΡΠ΅ΠΊΡΠΈΡΡΠ΅ΡΡΡ, ΠΏΡΠΎΠ²Π΅ΡΡΠ΅ΡΡΡ ΠΈ ΠΌΠΎΠΆΠ΅Ρ Π±ΡΡΡ ΡΠΈΠ»ΡΠ½ΠΎ ΠΈΠ·ΠΌΠ΅Π½Π΅Π½ΠΎ, ΡΡΠΎΠ±Ρ ΡΠ΄Π΅Π»Π°ΡΡ Π΅Π³ΠΎ Π±ΠΎΠ»Π΅Π΅ ΠΏΠΎΠ½ΡΡΠ½ΡΠΌ. ΠΠΏΡΠ΅Π΄Π΅Π»Π΅Π½Π½ΠΎ WIP!
ΠΠΎΠ³Π΄Π° Π²Ρ Π³ΠΎΠ²ΠΎΡΠΈΡΠ΅ ΠΎ ΠΊΠΎΠΌΠΏΠΎΠ·ΠΈΡΠ½ΡΡ
Π»Π°ΠΌΠΈΠ½Π°ΡΠ°Ρ
, Π΅ΡΡΡ ΠΌΠ½ΠΎΠ³ΠΎ Π²Π΅ΡΠ΅ΠΉ, ΠΊΠΎΡΠΎΡΡΠ΅ Π½ΡΠΆΠ½ΠΎ ΠΈΠ·ΠΌΠ΅ΡΠΈΡΡ ΠΈ ΠΎΡΡΠ»Π΅ΠΆΠΈΠ²Π°ΡΡ.
ΠΡΠΎ Π³Π»ΠΎΡΡΠ°ΡΠΈΠΉ ΠΎΡΠ½ΠΎΠ²Π½ΡΡ
ΡΡΠ°ΡΠΈΡΡΠΈΡΠ΅ΡΠΊΠΈΡ
Π΄Π°Π½Π½ΡΡ
ΠΈ ΡΠ²ΠΎΠΉΡΡΠ² Π»Π°ΠΌΠΈΠ½Π°ΡΠΎΠ² ΠΈ ΠΎΡΠ΄Π΅Π»ΡΠ½ΡΡ
ΠΏΠ»Π°ΡΡΠΈΠ½, ΠΈΠ· ΠΊΠΎΡΠΎΡΡΡ
ΠΎΠ½ΠΈ ΡΠΎΡΡΠΎΡΡ. ΠΡΠΎ Π΄ΠΎΠ»ΠΆΠ½ΠΎ ΠΏΠΎΠΌΠΎΡΡ Π² ΠΎΠ±ΡΡΠΆΠ΄Π΅Π½ΠΈΠΈ ΡΠ²ΠΎΠΉΡΡΠ² Π»Π°ΠΌΠΈΠ½Π°ΡΠ° ΠΊΠ°ΠΊ Ρ ΠΈΠ½ΠΆΠ΅Π½Π΅ΡΠ°ΠΌΠΈ, ΡΠ°ΠΊ ΠΈ Ρ ΠΏΡΠΎΠΈΠ·Π²ΠΎΠ΄ΠΈΡΠ΅Π»ΡΠΌΠΈ — ΠΈ ΡΡΠ°ΡΡ ΠΎΡΠ½ΠΎΠ²ΠΎΠΉ Π΄Π»Ρ Π±Π°Π·ΠΎΠ²ΠΎΠΉ ΡΠ°Π·ΡΠ°Π±ΠΎΡΠΊΠΈ ΠΊΠΎΠΌΠΏΠΎΠ·ΠΈΡΠΎΠ².
Π‘Π½Π°ΡΠ°Π»Π° Π½Π΅ΠΌΠ½ΠΎΠ³ΠΎ ΠΎ ΡΠΎΠΌ, ΡΡΠΎ Π΄Π΅Π»Π°Π΅Ρ ΠΊΠΎΠΌΠΏΠΎΠ·ΠΈΡΡ ΠΎΡΠΎΠ±Π΅Π½Π½ΡΠΌΠΈ — ΠΏΠΎ ΡΡΠ°Π²Π½Π΅Π½ΠΈΡ Ρ ΠΎΠ±ΡΡΠ½ΡΠΌΠΈ ΡΡΠ°ΡΡΠΌΠΈ ΠΌΠ΅ΡΠ°Π»Π»Π°ΠΌΠΈ. ΠΠ΅ΡΠ°Π»Π»Ρ ΠΏΡΠ°ΠΊΡΠΈΡΠ΅ΡΠΊΠΈ ΠΎΠ΄ΠΈΠ½Π°ΠΊΠΎΠ²Ρ Π²ΠΎ Π²ΡΠ΅ΠΌ ΠΈ Π² Π»ΡΠ±ΠΎΠΌ Π½Π°ΠΏΡΠ°Π²Π»Π΅Π½ΠΈΠΈ. Π’Π°ΠΊΠΈΠ΅ ΠΌΠ°ΡΠ΅ΡΠΈΠ°Π»Ρ Π½Π°Π·ΡΠ²Π°ΡΡΡΡ Β«ΠΎΠ΄Π½ΠΎΡΠΎΠ΄Π½ΡΠΌΠΈΒ», ΠΏΠΎΡΠΎΠΌΡ ΡΡΠΎ ΠΎΠ½ΠΈ ΡΠ΄Π΅Π»Π°Π½Ρ ΠΈΠ· ΠΎΠ΄Π½ΠΎΠ³ΠΎ ΠΈ ΡΠΎΠ³ΠΎ ΠΆΠ΅ ΠΌΠ°ΡΠ΅ΡΠΈΠ°Π»Π° ΠΎΠ΄ΠΈΠ½Π°ΠΊΠΎΠ²ΡΠΌ ΠΎΠ±ΡΠ°Π·ΠΎΠΌ, ΠΈ Β«ΠΈΠ·ΠΎΡΡΠΎΠΏΠ½ΡΠΌΠΈΒ», ΠΏΠΎΡΠΎΠΌΡ ΡΡΠΎ Π½Π΅Π·Π°Π²ΠΈΡΠΈΠΌΠΎ ΠΎΡ ΡΠΎΠ³ΠΎ, Π² ΠΊΠ°ΠΊΡΡ ΡΡΠΎΡΠΎΠ½Ρ Π²Ρ ΡΠΎΠ»ΠΊΠ°Π΅ΡΠ΅ ΠΈΠ»ΠΈ ΡΡΠ½Π΅ΡΠ΅, ΡΠ²ΠΎΠΉΡΡΠ²Π° ΠΏΡΠΈΠΌΠ΅ΡΠ½ΠΎ ΠΎΠ΄ΠΈΠ½Π°ΠΊΠΎΠ²Ρ. ΠΠΎΠΌΠΏΠΎΠ·ΠΈΡΠΎΠ² Π½Π΅ ΡΠ°ΠΊ ΡΠΆ ΠΈ ΠΌΠ½ΠΎΠ³ΠΎ!
ΠΠΎΠΌΠΏΠΎΠ·ΠΈΡ — ΡΡΠΎ ΠΊΠΎΠΌΠ±ΠΈΠ½Π°ΡΠΈΡ Π΄Π²ΡΡ ΡΠ°Π·Π½ΡΡ ΠΌΠ°ΡΠ΅ΡΠΈΠ°Π»ΠΎΠ², ΠΏΠΎΡΡΠΎΠΌΡ ΠΎΠ½ΠΈ Π½Π΅ΠΎΠ΄Π½ΠΎΡΠΎΠ΄Π½Ρ. ΠΠ΄Π½ΠΈΠΌ ΠΈΠ· ΠΌΠ°ΡΠ΅ΡΠΈΠ°Π»ΠΎΠ² ΡΠ°ΡΡΠΎ Π±ΡΠ²Π°Π΅Ρ ΠΏΠΎΠ»ΠΈΠΌΠ΅Ρ (ΠΏΠ»Π°ΡΡΠΈΠΊ, ΡΠΌΠΎΠ»Π° ΠΈ Ρ. Π.).), ΠΊΠΎΡΠΎΡΡΠΉ ΡΠ°ΠΌ ΠΏΠΎ ΡΠ΅Π±Π΅ ΡΠ²Π»ΡΠ΅ΡΡΡ ΠΎΠ΄Π½ΠΎΡΠΎΠ΄Π½ΡΠΌ — ΠΈ ΡΡΠΎ ΠΊΠ»Π΅ΠΉ, ΠΊΠΎΡΠΎΡΡΠΉ ΡΠΊΡΠ΅ΠΏΠ»ΡΠ΅Ρ Π²ΡΠΎΡΠΎΠΉ Π½Π΅ΠΎΠ΄Π½ΠΎΡΠΎΠ΄Π½ΡΠΉ ΠΌΠ°ΡΠ΅ΡΠΈΠ°Π». ΠΡΠΎΡΠΎΠΉ ΠΌΠ°ΡΠ΅ΡΠΈΠ°Π» ΡΠ°ΡΡΠΎ ΡΠΎΡΡΠΎΠΈΡ ΠΈΠ· Π²ΠΎΠ»ΠΎΠΊΠΎΠ½ ΠΎΠΏΡΠ΅Π΄Π΅Π»Π΅Π½Π½ΠΎΠ³ΠΎ ΠΌΠ°ΡΠ΅ΡΠΈΠ°Π»Π° ΠΈ Π΄Π»ΠΈΠ½Ρ, ΠΊΠΎΡΠΎΡΡΠ΅ ΠΈΠΌΠ΅ΡΡ Π½Π°ΠΏΡΠ°Π²Π»Π΅Π½ΠΈΠ΅. ΠΠΎΡΠΊΠΎΠ»ΡΠΊΡ Π²ΠΎΠ»ΠΎΠΊΠ½Π° ΠΏΡΠ΅Π΄ΡΡΠ°Π²Π»ΡΡΡ ΡΠΎΠ±ΠΎΠΉ ΡΠΎΠ½ΠΊΠΈΠ΅ ΠΌΠ°Π»Π΅Π½ΡΠΊΠΈΠ΅ ΡΠΈΠ»ΠΈΠ½Π΄ΡΡ, ΠΎΠ½ΠΈ ΠΈΠΌΠ΅ΡΡ Π΄Π»ΠΈΠ½Π½ΡΠΉ ΠΈ ΠΊΠΎΡΠΎΡΠΊΠΈΠΉ ΠΏΡΡΡ. Π ΡΠΎΠ²ΠΎΠΊΡΠΏΠ½ΠΎΡΡΠΈ ΡΡΠ° Π½Π°ΠΏΡΠ°Π²Π»Π΅Π½Π½ΠΎΡΡΡ ΠΌΠΎΠΆΠ΅Ρ ΡΠ΄Π΅Π»Π°ΡΡ ΠΊΠΎΠΌΠΏΠΎΠ·ΠΈΡ Π½Π°ΠΌΠ½ΠΎΠ³ΠΎ ΠΏΡΠΎΡΠ½Π΅Π΅ Π² Π½Π°ΠΏΡΠ°Π²Π»Π΅Π½ΠΈΠΈ Π²ΠΎΠ»ΠΎΠΊΠ½Π° — ΠΈ ΡΠΎΠ»ΡΠΊΠΎ ΡΠ°ΠΊΠΈΠΌ ΠΆΠ΅ ΠΏΡΠΎΡΠ½ΡΠΌ, ΠΊΠ°ΠΊ ΡΠΌΠΎΠ»Π° Π² Π΄ΡΡΠ³ΠΈΡ Π½Π°ΠΏΡΠ°Π²Π»Π΅Π½ΠΈΡΡ . ΠΡΠΎ Π½Π°Π·ΡΠ²Π°Π΅ΡΡΡ Β«Π°Π½ΠΈΠ·ΠΎΡΡΠΎΠΏΠ½ΡΠΌΒ» ΠΌΠ°ΡΠ΅ΡΠΈΠ°Π»ΠΎΠΌ — ΠΊΠ°ΠΊ Π² Β«Π½Π΅ΠΈΠ·ΠΎΡΡΠΎΠΏΠ½ΠΎΠΌΒ» — ΠΈ ΡΡΠΎ ΠΎΠ΄ΠΈΠ½ ΠΈΠ· ΠΊΠ»ΡΡΠ΅ΠΉ ΠΊ ΠΊΠΎΠΌΠΏΠΎΠ·ΠΈΡΠ½ΡΠΌ ΠΌΠ°ΡΠ΅ΡΠΈΠ°Π»Π°ΠΌ!
ΠΠ΄Π½ΠΎΡΠΎΠ΄Π½ΡΠΉ ΠΊΠΎΠΌΠΏΠΎΠ½Π΅Π½Ρ ΠΊΠΎΠΌΠΏΠΎΠ·ΠΈΡΠ° Π½Π°Π·ΡΠ²Π°Π΅ΡΡΡ Β«ΠΌΠ°ΡΡΠΈΡΠ΅ΠΉΒ» — ΡΡΠΎ ΠΊΠ»Π΅ΠΉ.ΠΠ΅ΠΎΠ΄Π½ΠΎΡΠΎΠ΄Π½ΡΠΉ Π²ΠΎΠ»ΠΎΠΊΠ½ΠΈΡΡΡΠΉ ΠΌΠ°ΡΠ΅ΡΠΈΠ°Π» Π½Π°Π·ΡΠ²Π°Π΅ΡΡΡ Β«Π°ΡΠΌΠ°ΡΡΡΠΎΠΉΒ». ΠΡ ΡΠ²ΠΈΠ΄ΠΈΡΠ΅, ΡΡΠΎ ΡΠ»ΠΎΠ²Π° Β«ΠΌΠ°ΡΡΠΈΡΠ°Β» ΠΈ Β«ΡΡΠΈΠ»Π΅Π½ΠΈΠ΅Β» ΠΈΡΠΏΠΎΠ»ΡΠ·ΡΡΡΡΡ ΠΎΡΠ΅Π½Ρ ΡΠ°ΡΡΠΎ. ΠΠ΅ ΡΡΠ΅ΡΠ½ΡΠΉΡΠ΅ΡΡ Π΄ΡΠΌΠ°ΡΡ ΠΎΠ± ΡΡΠΎΠΌ ΠΊΠ°ΠΊ ΠΎ Β«ΡΠΌΠΎΠ»Π΅Β» ΠΈ Β«Π²ΠΎΠ»ΠΎΠΊΠ½Π΅Β», Π΅ΡΠ»ΠΈ ΡΡΠΎ ΠΊΠ°ΠΆΠ΅ΡΡΡ Π±ΠΎΠ»Π΅Π΅ ΠΎΡΠ΅Π²ΠΈΠ΄Π½ΡΠΌ — ΠΏΠΎΡΠΎΠΌΡ ΡΡΠΎ ΠΈΠΌΠ΅Π½Π½ΠΎ ΡΠ°ΠΊ Π²Ρ Π±ΡΠ΄Π΅ΡΠ΅ Π½Π°Π·ΡΠ²Π°ΡΡ ΠΈΡ ΠΏΡΠΈ ΡΠΎΠ·Π΄Π°Π½ΠΈΠΈ Π²Π΅ΡΠ΅ΠΉ!
ΠΠΎΠΌΠΏΠΎΠ·ΠΈΡΠ½ΡΠ΅ Π΄Π΅ΡΠ°Π»ΠΈ ΠΎΠ±ΡΡΠ½ΠΎ ΡΠΎΡΡΠΎΡΡ ΠΈΠ· Π½Π΅ΡΠΊΠΎΠ»ΡΠΊΠΈΡ
ΡΠ»ΠΎΠ΅Π² (ΡΠ»ΠΎΠ΅Π²) Π°ΡΠΌΠ°ΡΡΡΡ ΠΈ ΡΠΌΠΎΠ»Ρ, ΠΊΠΎΡΠΎΡΡΠ΅ Π²ΠΌΠ΅ΡΡΠ΅ Π½Π°Π·ΡΠ²Π°ΡΡΡΡ Β«Π»Π°ΠΌΠΈΠ½Π°ΡΠΎΠΌΒ». ΠΡΠ»ΠΈ ΠΊΠ°ΠΆΠ΄ΡΠΉ ΡΠ»ΠΎΠΉ ΡΠΎΠ΄Π΅ΡΠΆΠΈΡ ΡΠΎΠ»ΡΠΊΠΎ Π²ΠΎΠ»ΠΎΠΊΠ½Π° ΠΎΠ΄Π½ΠΎΠΉ ΠΎΡΠΈΠ΅Π½ΡΠ°ΡΠΈΠΈ (ΠΈΠ»ΠΈ ΡΠ°ΡΠΏΡΠ΅Π΄Π΅Π»Π΅Π½ΠΈΡ ΠΎΡΠΈΠ΅Π½ΡΠ°ΡΠΈΠΈ), ΠΎΠ½ Π½Π°Π·ΡΠ²Π°Π΅ΡΡΡ Β«ΠΏΠ»Π°ΡΡΠΈΠ½ΠΎΠΉΒ».
ΠΡΠΎΡ Π΅Π΄ΠΈΠ½ΡΡΠ²Π΅Π½Π½ΡΠΉ ΡΠ»ΠΎΠΉ Π°ΡΠΌΠΈΡΠΎΠ²Π°Π½ΠΈΡ, ΡΠΌΠ΅ΡΠ°Π½Π½ΡΠΉ ΡΠΎ ΡΠΌΠΎΠ»ΠΎΠΉ (ΠΌΠ°ΡΡΠΈΡΠ΅ΠΉ), Π½Π°Π·ΡΠ²Π°Π΅ΡΡΡ Β«ΠΏΠ»Π°ΡΡΠΈΠ½ΠΎΠΉΒ». ΠΠ½ΠΎΠ³ΠΈΠ΅ Π»Π°ΠΌΠΈΠ½Π°ΡΡ ΡΠΊΠ»Π°Π΄ΡΠ²Π°ΡΡΡΡ Π² ΡΠΊΠ»Π°Π΄ΠΊΠΈ, ΡΡΠΎΠ±Ρ ΠΏΠΎΠ»ΡΡΠΈΠ»ΡΡ Π»Π°ΠΌΠΈΠ½Π°Ρ. ΠΠ°ΠΌΠΈΠ½Π°Ρ ΡΠΎΡΠΌΡΡΡ ΠΏΠΎ ΡΠ°ΡΡΡΠΌ.
ΠΡΠ°ΠΊ, ΠΊΠ°ΠΊ ΠΌΡ ΠΌΠΎΠΆΠ΅ΠΌ Π³ΠΎΠ²ΠΎΡΠΈΡΡ ΠΎ ΡΠΎΠΌ, ΡΠΊΠΎΠ»ΡΠΊΠΎ ΠΈΠ· ΡΠ΅Π³ΠΎ Π½Π°Ρ ΠΎΠ΄ΠΈΡΡΡ, Π΅ΡΠ»ΠΈ ΠΌΡ ΠΎΠΏΠΈΡΡΠ²Π°Π΅ΠΌ ΠΊΠΎΠΌΠΏΠΎΠ·ΠΈΡΠ½ΡΠΉ Π»Π°ΠΌΠΈΠ½Π°Ρ? ΠΠ»Ρ ΠΈΠ½ΠΆΠ΅Π½Π΅ΡΠ½ΡΡ ΡΠ΅Π»Π΅ΠΉ ΠΊΠΎΠΌΠΏΠΎΠ·ΠΈΡΡ ΠΎΠΏΠΈΡΡΠ²Π°ΡΡΡΡ ΠΎΡΠ½ΠΎΡΠΈΡΠ΅Π»ΡΠ½ΡΠΌΠΈ ΠΎΠ±ΡΠ΅ΠΌΠ°ΠΌΠΈ ΠΈΡ ΠΊΠΎΠΌΠΏΠΎΠ½Π΅Π½ΡΠΎΠ²: ΠΎΠ±ΡΠ΅ΠΌ Π²ΠΎΠ»ΠΎΠΊΠ½Π° ΠΏΠΎ ΡΡΠ°Π²Π½Π΅Π½ΠΈΡ Ρ ΠΎΠ±ΡΠ΅ΠΌΠΎΠΌ ΡΠΌΠΎΠ»Ρ. ΠΡΠ°ΠΊ, Π²Ρ Π³ΠΎΠ²ΠΎΡΠΈΡΠ΅ ΠΎ ΠΏΠ»Π°ΡΡΠΈΠ½Π΅ ΠΈΠ· ΠΎΠΏΡΠ΅Π΄Π΅Π»Π΅Π½Π½ΠΎΠ³ΠΎ ΠΎΠ±ΡΠ΅ΠΌΠ° Π²ΠΎΠ»ΠΎΠΊΠ½Π° ΠΈ ΡΠΌΠΎΠ»Ρ, ΠΏΡΠΈΡΠ΅ΠΌ Π²ΠΎΠ»ΠΎΠΊΠ½ΠΎ Π½Π°ΠΏΡΠ°Π²Π»Π΅Π½ΠΎ Π² ΠΎΠΏΡΠ΅Π΄Π΅Π»Π΅Π½Π½ΠΎΠΌ Π½Π°ΠΏΡΠ°Π²Π»Π΅Π½ΠΈΠΈ (Π°Ρ ).Π§ΡΠΎΠ±Ρ Π½Π΅ΠΌΠ½ΠΎΠ³ΠΎ ΡΠ±ΠΈΡΡ Ρ ΡΠΎΠ»ΠΊΡ, ΠΏΡΠΎΠΈΠ·Π²ΠΎΠ΄ΠΈΡΠ΅Π»ΠΈ ΠΈ ΡΡΡΠΎΠΈΡΠ΅Π»ΠΈ ΡΠ°ΡΠ΅ Π²ΡΠ΅Π³ΠΎ ΠΈΠΌΠ΅ΡΡ Π΄Π΅Π»ΠΎ Ρ Π½Π°Π·Π²Π°Π½ΠΈΡΠΌΠΈ Π²Π΅ΡΠ΅ΠΉ, ΠΎΡΠ½ΠΎΠ²Π°Π½Π½ΡΠΌΠΈ Π½Π° Π²Π΅ΡΠ΅. ΠΠ΅Ρ ΡΠΌΠΎΠ»Ρ ΠΈ Π²ΠΎΠ»ΠΎΠΊΠ½Π° Π½Π°ΠΌΠ½ΠΎΠ³ΠΎ Π»Π΅Π³ΡΠ΅ ΠΈΠ·ΠΌΠ΅ΡΠΈΡΡ, Π° ΠΌΠ°ΡΠ΅ΡΠΈΠ°Π»Ρ ΠΎΠ±ΡΡΠ½ΠΎ ΡΠΊΠ°Π·ΡΠ²Π°ΡΡΡΡ ΠΏΠΎ Π²Π΅ΡΡ.
Π‘ΠΎΠ΄Π΅ΡΠΆΠ°Π½ΠΈΠ΅
Π§Π°ΡΡΠΈ ΠΊΠΎΠΌΠΏΠΎΠ·ΠΈΡΠ½ΠΎΠ³ΠΎ ΠΌΠ°ΡΠ΅ΡΠΈΠ°Π»Π°
ΠΡΠ΅Π½Ρ Π±ΡΡΡΡΠΎ, Π²ΠΎΡ Π½Π΅ΠΊΠΎΡΠΎΡΡΠ΅ ΠΈΠ· ΡΠ΅ΡΠΌΠΈΠ½ΠΎΠ², ΠΈΡΠΏΠΎΠ»ΡΠ·ΡΠ΅ΠΌΡΡ Π΄Π»Ρ ΠΎΠΏΠΈΡΠ°Π½ΠΈΡ ΠΊΠΎΠΌΠΏΠΎΠ·ΠΈΡΠ½ΠΎΠ³ΠΎ ΠΌΠ°ΡΠ΅ΡΠΈΠ°Π»Π°, ΠΈΡ ΠΎΠΏΡΠ΅Π΄Π΅Π»Π΅Π½ΠΈΠΉ ΠΈ ΡΠΈΠ½ΠΎΠ½ΠΈΠΌΠΎΠ²!
- ΠΠΎΠ»ΠΎΠΊΠ½ΠΎ: ΡΠ°ΠΊΠΆΠ΅ ΠΈΠ·Π²Π΅ΡΡΠ½ΠΎΠ΅ ΠΊΠ°ΠΊ Β«Π°ΡΠΌΠΈΡΠΎΠ²Π°Π½ΠΈΠ΅Β» — Π½Π°ΠΏΡΠΈΠΌΠ΅Ρ, ΡΡΠ΅ΠΊΠ»ΠΎ, ΡΠ³Π»Π΅ΡΠΎΠ΄ ΠΈΠ»ΠΈ Π»Π΅Π½.
- Π‘ΠΌΠΎΠ»Π°: ΡΠ°ΠΊΠΆΠ΅ ΠΈΠ·Π²Π΅ΡΡΠ½Π°Ρ ΠΊΠ°ΠΊ Β«ΠΌΠ°ΡΡΠΈΡΠ°Β» ΠΈΠ»ΠΈ Β«ΠΏΠΎΠ»ΠΈΠΌΠ΅ΡΒ» — ΡΡΠΎ Β«ΠΊΠ»Π΅ΠΉΒ», ΡΠΊΡΠ΅ΠΏΠ»ΡΡΡΠΈΠΉ Π²ΠΎΠ»ΠΎΠΊΠ½Π°.
- Π‘ΠΎΡΡΠ°Π²: Π²ΠΎΠ»ΠΎΠΊΠ½ΠΎ + ΡΠΌΠΎΠ»Π° — ΠΎΠ±ΡΡΠ½ΠΎ Π²ΡΠ΅ ΡΠΌΠ΅ΡΠ°Π½ΠΎ ΠΈ ΡΠΏΠ»ΡΡΠ΅Π½ΠΎ, ΠΏΠΎΡΡΠΎΠΌΡ ΠΎΠ½ ΠΎΠ΄Π½ΠΎΡΠΎΠ΄Π΅Π½ ΠΈ Π½Π΅ ΡΠΎΠ΄Π΅ΡΠΆΠΈΡ ΡΠΎΠ½Π½Ρ Π²ΠΎΠ·Π΄ΡΡ Π°.
- ΠΠ°ΠΌΠΈΠ½Π°Ρ: ΠΊΠΎΠΌΠΏΠΎΠ·ΠΈΡ, Π² ΠΊΠΎΡΠΎΡΠΎΠΌ ΠΎΠΏΡΠ΅Π΄Π΅Π»Π΅Π½Π½ΡΠΉ Π½Π°Π±ΠΎΡ Π°ΡΠΌΠΈΡΠΎΠ²Π°Π½ΠΈΡ ΠΈΠ»ΠΈ ΠΎΠΏΡΠ΅Π΄Π΅Π»Π΅Π½Π½ΡΠ΅ Π²Π΅ΡΠ° ΡΠΊΠ°Π·ΡΠ²Π°ΡΡ Π² ΠΎΠΏΡΠ΅Π΄Π΅Π»Π΅Π½Π½ΡΡ Π½Π°ΠΏΡΠ°Π²Π»Π΅Π½ΠΈΡΡ .
- ΠΠ»Π°ΡΡΠΈΠ½Π°: ΡΠ°ΠΊΠΆΠ΅ ΠΈΠ·Π²Π΅ΡΡΠ½Π°Ρ ΠΊΠ°ΠΊ Β«ΡΠ»ΠΎΠΉΒ» — ΠΎΠ΄ΠΈΠ½ ΠΈΠ· ΡΠ»ΠΎΠ΅Π² Π»Π°ΠΌΠΈΠ½Π°ΡΠ°, ΡΠ°ΡΡΠΎ ΡΠ΄Π΅Π»Π°Π½Π½ΡΠΉ ΠΈΠ· ΠΌΠ°ΡΠ΅ΡΠΈΠ°Π»Π°, Π½Π°ΠΏΡΠ°Π²Π»Π΅Π½Π½ΠΎΠ³ΠΎ ΡΠΎΠ»ΡΠΊΠΎ Π² ΠΎΠ΄Π½ΠΎΠΌ Π½Π°ΠΏΡΠ°Π²Π»Π΅Π½ΠΈΠΈ.
ΠΠ»ΠΎΡΠ½ΠΎΡΡΡ
ΠΠΏΡΠ΅Π΄Π΅Π»Π΅Π½ΠΈΠ΅: ΠΠ»ΠΎΡΠ½ΠΎΡΡΡ — ΡΡΠΎ ΠΌΠ°ΡΡΠ° Π΅Π΄ΠΈΠ½ΠΈΡΡ ΠΎΠ±ΡΠ΅ΠΌΠ° ΠΌΠ°ΡΠ΅ΡΠΈΠ°Π»Π°.
Π ΠΏΡΠΎΠΈΠ·Π²ΠΎΠ΄ΡΡΠ²Π΅ ΠΊΠΎΠΌΠΏΠΎΠ·ΠΈΡΠΎΠ² ΠΌΠ°ΡΡΠ° ΠΈΠ»ΠΈ Π²Π΅Ρ ΡΠ²Π»ΡΡΡΡΡ ΡΠΈΠΏΠΈΡΠ½ΡΠΌ ΡΠΏΠΎΡΠΎΠ±ΠΎΠΌ ΠΎΠΏΠΈΡΠ°Π½ΠΈΡ Π΄Π΅ΡΠ°Π»Π΅ΠΉ. Π’ΠΎΠ»ΡΠΊΠΎ ΡΠΌΠΎΠ»Π° (Π΄ΠΎ ΡΠΎΠ³ΠΎ, ΠΊΠ°ΠΊ ΠΎΠ½Π° Π·Π°ΡΡΡΠ½Π΅Ρ!) ΠΠ·ΠΌΠ΅ΡΡΠ΅ΡΡΡ Π² ΠΎΠ±ΡΠ΅ΠΌΠ΅ — ΠΈ ΡΠΎ Π»ΠΈΡΡ ΠΈΠ½ΠΎΠ³Π΄Π°. ΠΡ Π³ΠΎΠ²ΠΎΡΠΈΡΠ΅: Β«ΠΠ° ΡΡΡ ΡΠ°ΡΡΡ ΡΡΠ΅Π±ΡΠ΅ΡΡΡ 1,2 Π»ΠΈΡΡΠ° ΡΠΌΠΎΠ»ΡΒ», Π½ΠΎ Π½Π΅ Π³ΠΎΠ²ΠΎΡΠΈΡΠ΅ Β«Π ΡΡΠΎΠΉ ΡΠ°ΡΡΠΈ 1,5 ΠΊΠ³ Π²ΠΎΠ»ΠΎΠΊΠ½Π° ΠΈ 1,2 Π»ΠΈΡΡΠ° ΡΠΌΠΎΠ»ΡΒ». ΠΡ ΠΏΡΠΎΡΡΠΎ Π³ΠΎΠ²ΠΎΡΠΈΡΠ΅, ΡΡΠΎ Π΄Π΅ΡΠ°Π»Ρ Π²Π΅ΡΠΈΡ 3 ΠΊΠ³!
Π’Π°ΠΊΠΈΠΌ ΠΎΠ±ΡΠ°Π·ΠΎΠΌ, ΠΌΠ°ΡΡΠ°, ΡΠ°Π·Π΄Π΅Π»Π΅Π½Π½Π°Ρ Π½Π° ΠΎΠ±ΡΠ΅ΠΌ, Π΄Π°Π΅Ρ ΠΌΠ΅ΡΡ ΠΏΠ»ΠΎΡΠ½ΠΎΡΡΠΈ.
3
Π’ΠΈΠΏΠΈΡΠ½ΡΠ΅ ΠΎΠ±ΡΠ΅ΠΌΡ
Π‘Π²ΠΎΠΉΡΡΠ²Π° ΠΊΠΎΠΌΠΏΠΎΠ·ΠΈΡΠ° Π·Π°Π²ΠΈΡΡΡ ΠΊΠ°ΠΊ ΠΎΡ ΡΠ²ΠΎΠΉΡΡΠ² Π²ΠΎΠ»ΠΎΠΊΠ½Π°, ΡΠ°ΠΊ ΠΈ ΠΎΡ ΡΠΌΠΎΠ»Ρ. Π‘ΡΠΌΠΌΠ°, ΠΊΠΎΡΠΎΡΡΡ ΠΊΠ°ΠΆΠ΄ΡΠΉ Π²Π½ΠΎΡΠΈΡ Π² ΡΠ΅Π»ΠΎΠ΅, Π·Π°Π²ΠΈΡΠΈΡ ΠΎΡ Π΅Π³ΠΎ ΠΎΡΠ½ΠΎΡΠΈΡΠ΅Π»ΡΠ½ΠΎΠ³ΠΎ ΠΎΠ±ΡΠ΅ΠΌΠ° (Π° Π½Π΅ Π²Π΅ΡΠ°!) Π ΠΊΠΎΠΌΠΏΠΎΠ·ΠΈΡΠ΅. ΠΡΠ»ΠΈ ΠΌΡ ΡΠ°Π·Π΄Π΅Π»ΠΈΠΌ ΠΌΠ½ΠΎΠ³ΠΎΡΠ»ΠΎΠΉΠ½ΡΠΉ ΠΊΠΎΠΌΠΏΠΎΠ·ΠΈΡ Π½Π° ΠΎΡΠ΄Π΅Π»ΡΠ½ΡΠ΅ Β«ΠΏΠ»Π°ΡΡΠΈΠ½ΠΊΠΈΒ», ΠΊΠ°ΠΆΠ΄Π°Ρ ΠΈΠ· ΠΊΠΎΡΠΎΡΡΡ ΠΏΡΠ΅Π΄ΡΡΠ°Π²Π»ΡΠ΅Ρ ΡΠΎΠ±ΠΎΠΉ ΡΠ»ΠΎΠΉ ΠΎΠ±ΡΠ΅Π³ΠΎ Β«Π»Π°ΠΌΠΈΠ½Π°ΡΠ°Β», ΠΌΡ ΡΠΌΠΎΠΆΠ΅ΠΌ ΡΠ°ΡΡΠΌΠΎΡΡΠ΅ΡΡ ΠΊΠ°ΠΆΠ΄ΡΠΉ ΠΎΡΠ΄Π΅Π»ΡΠ½ΠΎ. ΠΠ»Ρ ΠΊΠ°ΠΆΠ΄ΠΎΠΉ ΠΏΠ»Π°ΡΡΠΈΠ½ΠΊΠΈ / ΡΠ»ΠΎΡ ΠΌΡ ΠΌΠΎΠΆΠ΅ΠΌ ΠΏΠΎΡΠΌΠΎΡΡΠ΅ΡΡ ΡΠ΅ΠΎΡΠ΅ΡΠΈΡΠ΅ΡΠΊΠΈΠΉ Β«ΡΠ΅ΠΏΡΠ΅Π·Π΅Π½ΡΠ°ΡΠΈΠ²Π½ΡΠΉ ΠΎΠ±ΡΠ΅ΠΌΒ», ΠΊΠΎΡΠΎΡΡΠΉ Π²ΠΊΠ»ΡΡΠ°Π΅Ρ Π²ΠΎΠ»ΠΎΠΊΠ½Π° (Β«Π°ΡΠΌΠΈΡΠΎΠ²Π°Π½ΠΈΠ΅Β») ΠΈ ΡΠΌΠΎΠ»Ρ (Β«ΠΌΠ°ΡΡΠΈΡΡΒ»).
ΠΠΎΡ ΠΏΡΠΈΠΌΠ΅Ρ ΡΠ΅ΠΏΡΠ΅Π·Π΅Π½ΡΠ°ΡΠΈΠ²Π½ΠΎΠ³ΠΎ ΠΎΠ±ΡΠ΅ΠΌΠ° ΠΏΠ»Π°ΡΡΠΈΠ½ΠΊΠΈ, Π² ΠΊΠΎΡΠΎΡΠΎΠΉ ΠΌΠ½ΠΎΠ³ΠΎ ΡΠΌΠΎΠ»Ρ ΠΈ ΠΌΠ°Π»ΠΎ Π²ΠΎΠ»ΠΎΠΊΠ½Π°. ΠΠΎΠ»ΠΎΠΊΠ½ΠΎ ΡΠΎΡΡΠ°Π²Π»ΡΠ΅Ρ ΠΎΠΏΡΠ΅Π΄Π΅Π»Π΅Π½Π½ΡΠΉ ΠΎΠ±ΡΠ΅ΠΌ ΠΏΡΡΠΌΠΎΡΠ³ΠΎΠ»ΡΠ½ΠΈΠΊΠ°. ΠΡΠ΅Π΄ΡΡΠ°Π²Π»ΡΡ ΡΠ΅Π±Π΅ Π²Π΅ΡΡ ΠΎΠ±ΡΠ΅ΠΌ Π²ΠΎΠ»ΠΎΠΊΠ½Π° ΠΎΡΠ΄Π΅Π»ΡΠ½ΠΎ ΠΎΡ Π²ΡΠ΅Π³ΠΎ ΠΎΠ±ΡΠ΅ΠΌΠ° ΡΠΌΠΎΠ»Ρ, ΠΌΡ ΠΌΠΎΠΆΠ΅ΠΌ Π²ΠΈΠ·ΡΠ°Π»ΠΈΠ·ΠΈΡΠΎΠ²Π°ΡΡ ΠΎΠ±ΡΠ΅ΠΌΠ½ΡΡ Π΄ΠΎΠ»Ρ Π²ΠΎΠ»ΠΎΠΊΠ½Π°. ΠΠ΄Π΅ΡΡ Π½Π΅ΠΌΠ½ΠΎΠ³ΠΎ: Π²ΡΠ΅Π³ΠΎ 0,18! ΠΡΠΎ ΡΠ°ΠΌΡΠΉ Π½ΠΈΠΆΠ½ΠΈΠΉ ΠΏΡΠ΅Π΄Π΅Π» Π΄ΠΈΠ°ΠΏΠ°Π·ΠΎΠ½Π°, ΠΊΠΎΡΠΎΡΡΠΉ ΠΎΠ±ΡΡΠ½ΠΎ Π²ΡΡΡΠ΅ΡΠ°Π΅ΡΡΡ Π² ΡΠ΅ΡΠΌΠΎΡΠ΅Π°ΠΊΡΠΈΠ²Π½ΡΡ ΠΊΠΎΠΌΠΏΠΎΠ·ΠΈΡΠ°Ρ — ΠΏΠΎΠ΄ΡΠΎΠ±Π½Π΅Π΅ ΠΎΠ± ΡΡΠΎΠΌ Π½ΠΈΠΆΠ΅.
ΠΡ ΠΌΠΎΠΆΠ΅ΡΠ΅ ΡΠ²ΠΈΠ΄Π΅ΡΡ, ΠΊΠ°ΠΊ ΡΠ²ΠΎΠΉΡΡΠ²Π° ΠΊΠΎΠΌΠΏΠΎΠ·ΠΈΡΠ° Π±ΡΠ΄ΡΡ Π·Π°Π²ΠΈΡΠ΅ΡΡ ΠΎΡ Π½Π΅ΠΊΠΎΡΠΎΡΠΎΠΉ ΠΊΠΎΠΌΠ±ΠΈΠ½Π°ΡΠΈΠΈ ΡΠ²ΠΎΠΉΡΡΠ² Π²ΠΎΠ»ΠΎΠΊΠ½Π° ΠΈ ΡΠΌΠΎΠ»Ρβ¦
ΠΡΠ°Π²ΠΈΠ»ΠΎ ΡΠΌΠ΅ΡΠ΅ΠΉ
ΠΡ ΠΌΠΎΠΆΠ΅ΡΠ΅ (ΡΠ΅ΠΎΡΠ΅ΡΠΈΡΠ΅ΡΠΊΠΈ!) ΠΡΠ΅Π½ΠΈΡΡ ΡΠ²ΠΎΠΉΡΡΠ²Π° ΠΊΠΎΠΌΠΏΠΎΠ·ΠΈΡΠ°, Π²Π·Π²Π΅ΡΠΈΠ² ΡΠ²ΠΎΠΉΡΡΠ²Π° Π²ΠΎΠ»ΠΎΠΊΠ½Π° ΠΈ ΡΠΌΠΎΠ»Ρ ΠΏΠΎ ΠΈΡ ΠΎΡΠ½ΠΎΡΠΈΡΠ΅Π»ΡΠ½ΡΠΌ ΠΎΠ±ΡΠ΅ΠΌΠ°ΠΌ.ΠΡΠΎ Π½Π°Π·ΡΠ²Π°Π΅ΡΡΡ ΠΏΠΎΠ΄Ρ ΠΎΠ΄ΠΎΠΌ Β«ΠΏΡΠ°Π²ΠΈΠ»Π° ΡΠΌΠ΅ΡΠΈΠ²Π°Π½ΠΈΡΒ», ΠΏΠΎΡΠΎΠΌΡ ΡΡΠΎ ΠΎΠ½ ΠΎΡΠ½ΠΎΠ²Π°Π½ Π½Π° ΠΏΡΠΎΡΡΠΎΠΌ Π²Π·Π²Π΅ΡΠ΅Π½Π½ΠΎΠΌ ΡΠΌΠ΅ΡΠΈΠ²Π°Π½ΠΈΠΈ ΠΊΠΎΠΌΠΏΠΎΠ½Π΅Π½ΡΠΎΠ² ΠΊΠΎΠΌΠΏΠΎΠ·ΠΈΡΠ°. Π Π΅Π·ΡΠ»ΡΡΠ°ΡΡ, ΠΊΠΎΡΠΎΡΡΠ΅ Π²Ρ ΠΏΠΎΠ»ΡΡΠ°Π΅ΡΠ΅ ΡΠ°ΠΊΠΈΠΌ ΠΎΠ±ΡΠ°Π·ΠΎΠΌ, ΡΠ²Π»ΡΡΡΡΡ Π»ΠΈΡΡ ΠΏΡΠΈΠ±Π»ΠΈΠΆΠ΅Π½ΠΈΠ΅ΠΌ ΠΊ ΡΠ΅Π·ΡΠ»ΡΡΠ°ΡΠ°ΠΌ, ΠΊΠΎΡΠΎΡΡΠ΅ Π²Ρ ΠΏΠΎΠ»ΡΡΠΈΠ»ΠΈ Π±Ρ, Π΅ΡΠ»ΠΈ Π±Ρ ΠΈΠ·ΠΌΠ΅ΡΠΈΠ»ΠΈ ΡΠ΅Π°Π»ΡΠ½ΡΠΉ ΡΠΈΠΏΠΈΡΠ½ΡΠΉ Π»Π°ΠΌΠΈΠ½Π°Ρ. ΠΠΎΠΌΠΏΠΎΠ·ΠΈΡΠ½ΡΠ΅ ΠΌΠ°ΡΠ΅ΡΠΈΠ°Π»Ρ ΡΠ»ΠΎΠΆΠ½ΠΎ ΡΠΏΡΠΎΠ΅ΠΊΡΠΈΡΠΎΠ²Π°ΡΡ, ΠΏΠΎΡΡΠΎΠΌΡ Π²ΡΠ΅Π³Π΄Π° Π²Π°ΠΆΠ½ΠΎ ΠΏΠΎΠ΄ΡΠ²Π΅ΡΠΆΠ΄Π°ΡΡ ΡΠ²ΠΎΠΈ ΠΎΡΠ΅Π½ΠΊΠΈ Ρ ΠΏΠΎΠΌΠΎΡΡΡ ΡΠ΅Π°Π»ΡΠ½ΡΡ ΠΈΡΠΏΡΡΠ°Π½ΠΈΠΉ ΠΌΠ°ΡΠ΅ΡΠΈΠ°Π»ΠΎΠ². Π’Π°ΠΊΠΆΠ΅ — Π½Π°ΠΉΠΌΠΈΡΠ΅ ΠΎΠΏΡΡΠ½ΠΎΠ³ΠΎ ΠΊΠΎΠΌΠΏΠΎΠ·ΠΈΡΠ½ΠΎΠ³ΠΎ ΠΈΠ½ΠΆΠ΅Π½Π΅ΡΠ°!
ΠΡΠ°ΠΊ, Π΄Π»Ρ Π»ΡΠ±ΠΎΠ³ΠΎ Π·Π°Π΄Π°Π½Π½ΠΎΠ³ΠΎ ΡΠ²ΠΎΠΉΡΡΠ²Π° ΠΏΠ»Π°ΡΡΠΈΠ½ΠΊΠΈ Β«XΒ» Π²ΠΎΠ»ΠΎΠΊΠ½Π° ( X_fiber ) ΠΈ ΡΠΌΠΎΠ»Ρ ( X_resin ) Ρ ΠΎΠ±ΡΠ΅ΠΌΠ½ΠΎΠΉ Π΄ΠΎΠ»Π΅ΠΉ Π²ΠΎΠ»ΠΎΠΊΠ½Π° V_fiber ΠΈ ΠΎΠ±ΡΠ΅ΠΌΠ½ΠΎΠΉ Π΄ΠΎΠ»Π΅ΠΉ ΡΠΌΠΎΠ»Ρ V_resin :
ΠΠ±ΡΠΈΠΉ ΠΎΠ±ΡΠ΅ΠΌ = 1
ΠΡΠ°ΠΊ: V_fiber + V_resin = 1 (Π²Ρ ΡΠ°ΠΊΠΆΠ΅ ΠΌΠΎΠΆΠ΅ΡΠ΅ Π΄ΠΎΠ±Π°Π²ΠΈΡΡ ΡΠΎΠΌ V_voids Π΄Π»Ρ ΠΏΡΡΡΠΎΠ³ΠΎ ΡΠΎΠ΄Π΅ΡΠΆΠΈΠΌΠΎΠ³ΠΎ)
V_resin = (1-V_fiber) (ΡΠ°ΠΊΠΆΠ΅ V_fiber = (1-V_resin)
ΠΠΎ Β«ΠΡΠ°Π²ΠΈΠ»Ρ ΡΠΌΠ΅ΡΠ΅ΠΉΒ» Π΄Π»Ρ ΠΊΠ°ΠΆΠ΄ΠΎΠΉ ΠΏΠ»Π°ΡΡΠΈΠ½Ρ:
X_composite = X_fiber * V_fiber + X_resin * (1-V_fiber)
Π’Π°ΠΊΠΈΠΌ ΠΎΠ±ΡΠ°Π·ΠΎΠΌ, ΠΊΠ°ΠΆΠ΄ΠΎΠ΅ ΡΠ²ΠΎΠΉΡΡΠ²ΠΎ ΠΏΡΠΎΠΏΠΎΡΡΠΈΠΎΠ½Π°Π»ΡΠ½ΠΎ ΡΠ²ΠΎΠ΅ΠΌΡ ΠΎΠ±ΡΠ΅ΠΌΡ Π² ΠΊΠΎΠΌΠΏΠΎΠ·ΠΈΡΠ½ΠΎΠΉ ΠΏΠ»Π°ΡΡΠΈΠ½Π΅.
Π ΠΊΠ°ΠΆΠ΄Π°Ρ ΠΏΠ»Π°ΡΡΠΈΠ½Π° Π²Π½ΠΎΡΠΈΡ ΡΠ²ΠΎΠΉ Π²ΠΊΠ»Π°Π΄ Π² ΠΎΠ±ΡΠΈΠ΅ ΡΠ²ΠΎΠΉΡΡΠ²Π° ΠΊΠΎΠΌΠΏΠΎΠ·ΠΈΡΠ° ΠΎΡΠ½ΠΎΡΠΈΡΠ΅Π»ΡΠ½ΠΎ Π΅Π΅ ΡΠΎΠ±ΡΡΠ²Π΅Π½Π½ΠΎΠ³ΠΎ ΠΎΠ±ΡΠ΅ΠΌΠ°, ΡΠ²ΠΎΠΉΡΡΠ² ΠΈ ΠΏΠΎΠ»ΠΎΠΆΠ΅Π½ΠΈΡ Π² Β«ΡΡΠΎΠΏΠΊΠ΅ Π»Π°ΠΌΠΈΠ½Π°ΡΠ°Β».
ΠΠΎ ΡΡΠΎΠ±Ρ Π·Π½Π°ΡΡ ΡΡΠΈ ΠΎΠ±ΡΠ΅ΠΌΠ½ΡΠ΅ ΡΠΎΠΎΡΠ½ΠΎΡΠ΅Π½ΠΈΡ Π²ΠΎΠ»ΠΎΠΊΠ½Π° ΠΈ ΡΠΌΠΎΠ»Ρ, ΠΌΡ Π΄ΠΎΠ»ΠΆΠ½Ρ Π·Π½Π°ΡΡ, ΡΠΊΠΎΠ»ΡΠΊΠΎ ΡΠ°ΠΊΡΠΈΡΠ΅ΡΠΊΠΎΠ³ΠΎ ΠΏΡΠΎΡΡΡΠ°Π½ΡΡΠ²Π° ΠΊΠ°ΠΆΠ΄ΡΠΉ Π·Π°Π½ΠΈΠΌΠ°Π΅Ρ Π² ΠΏΠ»Π°ΡΡΠΈΠ½Π΅. ΠΡΠΎ ΠΌΠΎΠΆΠ΅Ρ Π±ΡΡΡ ΡΡΡΠ΄Π½ΠΎ ΠΈΠ·ΠΌΠ΅ΡΠΈΡΡ, ΠΏΠΎΡΠΎΠΌΡ ΡΡΠΎ Π²ΠΎΠ»ΠΎΠΊΠ½Π° ΠΊΡΠΎΡΠ΅ΡΠ½ΡΠ΅, Π° ΡΠΌΠΎΠ»Π° ΡΠΏΠ»ΡΡΠ΅Π½Π° Π²ΠΎΠΊΡΡΠ³ Π²ΡΠ΅Ρ . ΠΠΎ ΠΌΡ Π·Π½Π°Π΅ΠΌ ΠΏΠ»ΠΎΡΠ½ΠΎΡΡΡ ΠΈΠ· ΡΠ°Π±Π»ΠΈΡ Ρ Π°ΡΠ°ΠΊΡΠ΅ΡΠΈΡΡΠΈΠΊ ΡΠΌΠΎΠ» ΠΈ Π²Π΅Ρ Π²ΠΎΠ»ΠΎΠΊΠ½Π°β¦ ΠΈ ΠΌΡ ΠΌΠΎΠΆΠ΅ΠΌ Π·Π½Π°ΡΡ Π²Π΅Ρ Π²ΡΠ΅Π³ΠΎ Π»Π°ΠΌΠΈΠ½Π°ΡΠ°.2!
ΠΠ΅Π±ΠΎΠ»ΡΡΠΎΠ΅ ΠΏΡΠΈΠΌΠ΅ΡΠ°Π½ΠΈΠ΅: ΡΠΊΠ°Π·Π°Π½Π½ΡΠΉ ΠΏΠΎΠ²Π΅ΡΡ Π½ΠΎΡΡΠ½ΡΠΉ Π²Π΅Ρ ΠΌΠΎΠΆΠ΅Ρ ΠΎΡΠ»ΠΈΡΠ°ΡΡΡΡ ΠΎΡ ΡΠΎΠ³ΠΎ, ΡΡΠΎ Π²Ρ ΠΏΠΎΠ»ΡΡΠ°Π΅ΡΠ΅ Π½Π° ΡΠ°ΠΌΠΎΠΌ Π΄Π΅Π»Π΅, ΠΎΡΠΎΠ±Π΅Π½Π½ΠΎ Ρ ΡΠ»Π΅ΠΊΡΡΠΎΠ½Π½ΡΠΌ ΡΡΠ΅ΠΊΠ»ΠΎΠΌ. ΠΠ΅ΠΈΠ·Π²Π΅ΡΡΠ½ΠΎ, ΡΡΠΎ ΠΎΡΠΊΠ»ΠΎΠ½Π΅Π½ΠΈΠ΅ Π΄ΠΎ 5 ΠΈΠ»ΠΈ 10% — ΠΎΠ±ΡΡΠ½ΠΎ ΡΡΠΆΠ΅Π»Π΅Π΅, ΡΠ΅ΠΌ Π΄ΠΎΠ»ΠΆΠ½ΠΎ Π±ΡΡΡ. Π£Π³Π»Π΅ΡΠΎΠ΄ ΠΎΠ±ΡΡΠ½ΠΎ Π±Π»ΠΈΠΆΠ΅ ΠΊ ΡΠΊΠ°Π·Π°Π½Π½ΠΎΠΌΡ Π²Π΅ΡΡ. ΠΡΠΎΡΡΠΎ Π±ΡΠ΄ΡΡΠ΅ ΠΎΡΡΠΎΡΠΎΠΆΠ½Ρ ΠΈ ΠΏΡΠΎΠ²Π΅ΡΡΠΉΡΠ΅ ΠΏΠΎΠ²Π΅ΡΡ Π½ΠΎΡΡΠ½ΡΠΉ Π²Π΅Ρ ΠΌΠ°ΡΠ΅ΡΠΈΠ°Π»Π°, ΠΊΠΎΠ³Π΄Π° ΠΎΠ½ ΠΏΠΎΡΠ²ΠΈΡΡΡ — ΠΎΡΠΈΠ±ΠΊΠ° Π²Π΅ΡΠ° Π² 10% ΠΌΠΎΠΆΠ΅Ρ Π±ΡΡΡ ΡΠ΅ΡΡΠ΅Π·Π½ΠΎΠΉ ΠΎΡΠΈΠ±ΠΊΠΎΠΉ!
ΠΠ±ΡΠ΅ΠΌΠ½Π°Ρ Π΄ΠΎΠ»Ρ Π²ΠΎΠ»ΠΎΠΊΠ½Π°
ΠΠ°ΠΊ ΠΌΡ ΠΌΠΎΠ³Π»ΠΈ Π²ΠΈΠ΄Π΅ΡΡ, ΠΈΠ·ΡΡΠ°Ρ ΠΏΠΎΠ΄Ρ ΠΎΠ΄ ΠΊ ΠΏΡΠ°Π²ΠΈΠ»Ρ ΡΠΌΠ΅ΡΠ΅ΠΉ Π΄Π»Ρ ΠΎΡΠ΅Π½ΠΊΠΈ ΠΏΠ»Π°ΡΡΠΈΠ½ — Π΄Π»Ρ ΠΈΠ½ΠΆΠ΅Π½Π΅ΡΠ½ΡΡ ΡΠ΅Π»Π΅ΠΉ Π²Π°ΠΆΠ½ΠΎ Π·Π½Π°ΡΡ ΠΎΡΠ½ΠΎΡΠΈΡΠ΅Π»ΡΠ½ΡΠ΅ ΠΎΠ±ΡΠ΅ΠΌΡ Π²ΠΎΠ»ΠΎΠΊΠ½Π° ΠΈ ΡΠΌΠΎΠ»Ρ.2. Π’ΠΎ ΠΆΠ΅ ΡΠ°ΠΌΠΎΠ΅ ΠΈ Ρ ΠΊΠΎΠΌΠΏΠΎΠ·ΠΈΡΠ°ΠΌΠΈ!
ΠΡΠ°ΠΊ, ΡΡΠΎ Π½Π°ΠΌ Π½ΡΠΆΠ½ΠΎ ΡΠ°ΡΡΡΠΈΡΠ°ΡΡ, ΡΡΠΎ Β«ΠΎΠ±ΡΠ΅ΠΌΠ½ΡΡ Π΄ΠΎΠ»Ρ Π²ΠΎΠ»ΠΎΠΊΠ½Π°Β» ΠΈΠ»ΠΈ Β«ΠΎΠ±ΡΠ΅ΠΌΠ½ΡΡ Π΄ΠΎΠ»Ρ Π²ΠΎΠ»ΠΎΠΊΠ½Π°Β» Π»Π°ΠΌΠΈΠ½Π°ΡΠ° — ΠΈΠ»ΠΈ Π»Π°ΠΌΠΈΠ½Π°ΡΠ° Π² ΡΠ΅Π»ΠΎΠΌ. ΠΠΎΡΠΊΠΎΠ»ΡΠΊΡ Π²ΠΎΠ»ΠΎΠΊΠ½ΠΎ Π²ΡΠΏΠΎΠ»Π½ΡΠ΅Ρ ΡΡΠΆΠ΅Π»ΡΡ ΡΠ°Π±ΠΎΡΡ, ΠΎΠ±ΡΡΠ½ΠΎ ΠΌΡ Π³ΠΎΠ²ΠΎΡΠΈΠΌ ΠΎΠ± ΠΎΠ±ΡΠ΅ΠΌΠ΅ Π²ΠΎΠ»ΠΎΠΊΠ½Π°, Π½ΠΎ Π² ΡΠ»ΡΡΠ°Π΅ Π²Π΅ΡΠ° ΡΠ°ΡΡΠΎ ΡΡΠΈΡΡΠ²Π°Π΅ΡΡΡ ΠΏΡΠΎΡΠ΅Π½ΡΠ½ΠΎΠ΅ ΡΠΎΠ΄Π΅ΡΠΆΠ°Π½ΠΈΠ΅ ΡΠΌΠΎΠ»Ρ.
ΠΠΏΡΠ΅Π΄Π΅Π»Π΅Π½ΠΈΠ΅: ΠΠ±ΡΠ΅ΠΌΠ½Π°Ρ Π΄ΠΎΠ»Ρ Π²ΠΎΠ»ΠΎΠΊΠ½Π° — ΡΡΠΎ ΠΎΠ±ΡΠ΅ΠΌΠ½ΠΎΠ΅ ΠΎΡΠ½ΠΎΡΠ΅Π½ΠΈΠ΅ Π²ΠΎΠ»ΠΎΠΊΠ½Π° ΠΊ ΡΠΌΠΎΠ»Π΅ Π² ΠΊΠΎΠΌΠΏΠΎΠ·ΠΈΡΠ΅ ΠΈΠ»ΠΈ ΠΏΡΠΎΡΠ΅Π½ΡΠ½ΠΎΠ΅ ΡΠΎΠ΄Π΅ΡΠΆΠ°Π½ΠΈΠ΅ Π²ΠΎΠ»ΠΎΠΊΠ½Π° ΠΏΠΎ ΠΎΠ±ΡΠ΅ΠΌΡ Π² ΠΏΠ»Π°ΡΡΠΈΠ½Π΅.
Π§ΡΠΎΠ±Ρ Π²ΡΡΠΈΡΠ»ΠΈΡΡ V_fiber ΠΈ, ΡΠ»Π΅Π΄ΠΎΠ²Π°ΡΠ΅Π»ΡΠ½ΠΎ, V_resin (ΠΊΠΎΡΠΎΡΡΠΉ ΡΠ°Π²Π΅Π½ 1 — V_fiber — V_void), Π½Π°ΠΌ ΡΠ½Π°ΡΠ°Π»Π° Π½ΡΠΆΠ½ΠΎ Π·Π½Π°ΡΡ Π²Π΅Ρ Π²ΠΎΠ»ΠΎΠΊΠ½Π° (W_fiber) Π² Π΅Π΄ΠΈΠ½ΠΈΡΠ°Ρ Π»Π°ΠΌΠΈΠ½Π°ΡΠ°, ΠΊΠΎΡΠΎΡΡΠ΅ ΠΌΡ ΠΎΡΠ΅Π½ΠΈΠ²Π°Π΅ΠΌ.
V_void — ΡΡΠΎ ΠΎΠ±ΡΠ΅ΠΌ ΠΏΡΡΡΠΎΡ (Π½Π°ΠΏΡΠΈΠΌΠ΅Ρ, Π½Π΅ Π²ΠΎΠ»ΠΎΠΊΠ½ΠΎ ΠΈΠ»ΠΈ ΡΠΌΠΎΠ»Π°) Π² Π²ΠΈΠ΄Π΅ ΡΡΠ°ΠΊΡΠΈΠΈ, ΠΏΠΎΡΡΠΎΠΌΡ V_void = 0,01 ΠΏΡΠ΅Π΄ΡΡΠ°Π²Π»ΡΠ΅Ρ 1% ΠΏΡΡΡΠΎΡΠ½ΠΎΠ³ΠΎ ΡΠΎΠ΄Π΅ΡΠΆΠΈΠΌΠΎΠ³ΠΎ. ΠΠΎ Π΄Π°Π²Π°ΠΉΡΠ΅ ΠΏΠΎΠΊΠ° Π·Π°Π±ΡΠ΄Π΅ΠΌ ΠΎ ΠΏΡΡΡΠΎΡΠ°Ρ β¦
ΠΠ½Π°Ρ Π²Π΅Ρ ΠΊΠΎΠΌΠΏΠΎΠ·ΠΈΡΠ° (W_composite) ΠΈ Π²ΠΎΠ»ΠΎΠΊΠ½Π° (W_fiber) Π΄Π»Ρ Π΄Π°Π½Π½ΠΎΠΉ ΠΏΠ»ΠΎΡΠ°Π΄ΠΈ, ΠΌΡ ΠΌΠΎΠΆΠ΅ΠΌ ΡΠ°ΡΡΡΠΈΡΠ°ΡΡ Π²Π΅Ρ ΡΠΌΠΎΠ»Ρ (W_resin).
ΠΡΠΈ ΡΠ°ΡΡΠ΅ΡΡ ΠΏΡΠΎΡΠ΅ Π²ΡΠ΅Π³ΠΎ Π²ΡΠΏΠΎΠ»Π½ΠΈΡΡ Π΄Π»Ρ ΠΎΠΏΡΠ΅Π΄Π΅Π»Π΅Π½Π½ΠΎΠΉ ΠΏΠ»ΠΎΡΠ°Π΄ΠΈ Π»Π°ΠΌΠΈΠ½Π°ΡΠ°, ΡΠΊΠ°ΠΆΠ΅ΠΌ, ΠΎΠ΄Π½ΠΎΠ³ΠΎ ΠΊΠ²Π°Π΄ΡΠ°ΡΠ½ΠΎΠ³ΠΎ ΠΌΠ΅ΡΡΠ°, Π° Π·Π°ΡΠ΅ΠΌ ΠΈΡΠΏΠΎΠ»ΡΠ·ΠΎΠ²Π°ΡΡ Π΄Π»Ρ ΠΊΠΎΠ½ΠΊΡΠ΅ΡΠ½ΡΡ
ΠΏΠ»ΠΎΡΠ°Π΄Π΅ΠΉ ΠΏΠΎΡΠ»Π΅ ΠΈΡ
ΠΎΠ±ΠΎΠ±ΡΠ΅Π½ΠΈΡ.
W_resin = W_composite — W_fiber
Π ΠΏΠΎΡΠΊΠΎΠ»ΡΠΊΡ ΠΌΡ ΠΈΡΠ΅ΠΌ ΠΎΠ±ΡΠ΅ΠΌΠ½ΡΡ Π΄ΠΎΠ»Ρ Π²ΠΎΠ»ΠΎΠΊΠ½Π°, Π½Π°ΠΌ Π½ΡΠΆΠ½Π° ΠΌΠ°ΡΡΠΎΠ²Π°Ρ Π΄ΠΎΠ»Ρ Π²ΠΎΠ»ΠΎΠΊΠ½Π°:
W_fraction = W_fiber / W_composite
Π ΠΈΠ· ΡΠ°Π±Π»ΠΈΡ Π΄Π°Π½Π½ΡΡ ΠΌΡ Π·Π½Π°Π΅ΠΌ ΠΏΠ»ΠΎΡΠ½ΠΎΡΡΠΈ Π²ΠΎΠ»ΠΎΠΊΠ½Π° (D_fiber) ΠΈ ΡΠΌΠΎΠ»Ρ (D_resin). Π‘ ΠΈΡ ΠΏΠΎΠΌΠΎΡΡΡ ΠΌΡ ΠΌΠΎΠΆΠ΅ΠΌ ΡΠ°ΡΡΡΠΈΡΠ°ΡΡ ΠΌΠ°ΡΡΠΎΠ²ΡΡ Π΄ΠΎΠ»Ρ Π²ΠΎΠ»ΠΎΠΊΠ½Π° Π΄Π»Ρ ΠΊΠΎΠΌΠΏΠΎΠ·ΠΈΡΠ°:
ΠΡΠ½ΠΎΡΠ΅Π½ΠΈΠ΅ ΠΏΠ»ΠΎΡΠ½ΠΎΡΡΠΈ Π²ΠΎΠ»ΠΎΠΊΠ½Π° ΠΊ ΡΠΌΠΎΠ»Π΅:
D_fraction = D_fiber / D_resin
Π ΠΌΡ ΠΌΠΎΠΆΠ΅ΠΌ Π²ΡΡΠΈΡΠ»ΠΈΡΡ Π΄ΠΎΠ»Ρ ΠΎΠ±ΡΠ΅ΠΌΠ° Π²ΠΎΠ»ΠΎΠΊΠ½Π°:
ΠΠΎΠ»ΠΎΠΊΠ½ΠΎ_ΠΠ±ΡΠ΅ΠΌ_Π€ΡΠ°ΠΊΡΠΈΡ = 1 / ((1 + ( D_fraction ) x ((1/ W_fraction ) — 1))
Π₯ΠΎΡΠΎΡΠΎ! Π ΡΠ΅ΠΏΠ΅ΡΡ ΠΌΡ ΠΌΠΎΠΆΠ΅ΠΌ ΡΠ°ΡΡΡΠΈΡΠ°ΡΡ ΠΎΠ±ΡΠ΅ΠΌΠ½ΡΡ Π΄ΠΎΠ»Ρ ΡΠΌΠΎΠ»Ρ, ΠΊΠΎΡΠΎΡΠ°Ρ ΡΠΎΡΡΠ°Π²Π»ΡΠ΅Ρ Π²ΡΠ΅Π³ΠΎ:
.Resin_Volume_Fraction = 1 — Fiber_Volume_Fraction
ΠΡΠ»ΠΈ ΠΌΡ Ρ ΠΎΡΠΈΠΌ Π²Π΅ΡΠ½ΡΡΡ ΠΏΡΡΡΠΎΠ΅ ΡΠΎΠ΄Π΅ΡΠΆΠΈΠΌΠΎΠ΅, ΠΌΡ ΠΌΠΎΠΆΠ΅ΠΌ Π΄ΠΎΠ±Π°Π²ΠΈΡΡ ΡΡΠΎ Π² ΡΡΠ°Π²Π½Π΅Π½ΠΈΠ΅ Π΄ΠΎΠ»ΠΈ ΠΎΠ±ΡΠ΅ΠΌΠ° Π²ΠΎΠ»ΠΎΠΊΠ½Π°:
Fiber_Volume_Fraction = (1 — V_void) / ((1 + ( D_fraction ) x ((1/ W_fraction ) — 1))
ΠΠ°ΡΠ° ΡΠ΅Π»Ρ Π·Π΄Π΅ΡΡ — ΠΈΠΌΠ΅ΡΡ Π²ΠΎΠ·ΠΌΠΎΠΆΠ½ΠΎΡΡΡ ΠΏΠ΅ΡΠ΅Ρ ΠΎΠ΄ΠΈΡΡ ΠΌΠ΅ΠΆΠ΄Ρ ΠΎΡΠ΅Π½ΠΊΠ°ΠΌΠΈ ΠΎΠ±ΡΠ΅ΠΌΠ½ΠΎΠΉ Π΄ΠΎΠ»ΠΈ Π²ΠΎΠ»ΠΎΠΊΠ½Π°, ΠΎΠ±ΡΠ΅ΠΌΠ½ΠΎΠΉ Π΄ΠΎΠ»ΠΈ ΡΠΌΠΎΠ»Ρ ΠΈ Π²Π΅ΡΠΎΠ²ΠΎΠ³ΠΎ ΠΎΡΠ½ΠΎΡΠ΅Π½ΠΈΡ Π²ΠΎΠ»ΠΎΠΊΠ½Π° ΠΈ ΡΠΌΠΎΠ»Ρ (ΡΠΌ. ΠΡΡΠ΅ W_fraction ).
Π’Π΅ΠΎΡΠ΅ΡΠΈΡΠ΅ΡΠΊΠ°Ρ ΠΌΠ°ΠΊΡΠΈΠΌΠ°Π»ΡΠ½Π°Ρ ΠΎΠ±ΡΠ΅ΠΌΠ½Π°Ρ Π΄ΠΎΠ»Ρ Π²ΠΎΠ»ΠΎΠΊΠ½Π° ΡΠΎΡΡΠ°Π²Π»ΡΠ΅Ρ ΠΎΠΊΠΎΠ»ΠΎ 90% Ρ ΡΠΏΠ°ΠΊΠΎΠ²Π°Π½Π½ΡΠΌΠΈ ΠΎΠ΄Π½ΠΎΠ½Π°ΠΏΡΠ°Π²Π»Π΅Π½Π½ΡΠΌΠΈ Π²ΠΎΠ»ΠΎΠΊΠ½Π°ΠΌΠΈ ΠΌΠ°Π»ΠΎΠ³ΠΎ Π΄ΠΈΠ°ΠΌΠ΅ΡΡΠ°. Π ΠΏΠΎΠΏΠ΅ΡΠ΅ΡΠ½ΠΎΠΌ ΡΠ΅ΡΠ΅Π½ΠΈΠΈ ΡΠΈΠ»ΠΈΠ½Π΄ΡΡ ΡΠΎΠ»ΡΠΊΠΎ ΡΠ°ΠΊ ΠΏΠ»ΠΎΡΠ½ΠΎ ΡΠΏΠ°ΠΊΠΎΠ²Π°Π½Ρ! ΠΠ· ΡΡΠΎΠ³ΠΎ ΠΏΠΎΠ»ΡΡΠΈΡΡΡ Π½Π΅ ΠΎΡΠ΅Π½Ρ ΠΏΠΎΠ»Π΅Π·Π½ΡΠΉ ΠΊΠΎΠΌΠΏΠΎΠ·ΠΈΡ, ΠΏΠΎΡΠΎΠΌΡ ΡΡΠΎ ΡΠΌΠΎΠ»Ρ Π΅Π΄Π²Π° Ρ Π²Π°ΡΠΈΡ, ΡΡΠΎΠ±Ρ ΡΠΊΡΠ΅ΠΏΠΈΡΡ Π΅Π³ΠΎ.
Π ΠΌΠ΅ΡΠΎΠ΄ ΠΎΠ±ΡΠ°Π±ΠΎΡΠΊΠΈ ΡΠΎΠΆΠ΅ ΠΈΠΌΠ΅Π΅Ρ Π·Π½Π°ΡΠ΅Π½ΠΈΠ΅ — pre-preg Π² Π°Π²ΡΠΎΠΊΠ»Π°Π²Π΅ Π±ΡΠ΄Π΅Ρ ΠΈΠΌΠ΅ΡΡ Π±ΠΎΠ»Π΅Π΅ Π²ΡΡΠΎΠΊΡΡ ΠΎΠ±ΡΠ΅ΠΌΠ½ΡΡ Π΄ΠΎΠ»Ρ, ΡΠ΅ΠΌ ΡΠ΅ ΠΆΠ΅ ΠΌΠ°ΡΠ΅ΡΠΈΠ°Π»Ρ, ΡΠ»ΠΎΠΆΠ΅Π½Π½ΡΠ΅ Π²ΡΡΡΠ½ΡΡ ΡΠΎΠ»ΡΠΊΠΎ Ρ ΡΠΎΠ»ΠΈΠΊΠΎΠΌ Π΄Π»Ρ ΡΠΏΠ»ΠΎΡΠ½Π΅Π½ΠΈΡ. ΠΠΎΡ Π½Π΅ΠΊΠΎΡΠΎΡΡΠ΅ ΡΠΈΠΏΠΈΡΠ½ΡΠ΅ ΠΎΠ±ΡΠ΅ΠΌΠ½ΡΠ΅ Π΄ΠΎΠ»ΠΈ Π²ΠΎΠ»ΠΎΠΊΠ½Π° Π΄Π»Ρ ΡΠ°Π·Π½ΡΡ ΡΠΈΠΏΠΎΠ² ΡΠΊΠ»Π°Π΄ΠΊΠΈ:
- ΠΡΠΊΡΡΡΠ°Ρ ΡΠΎΡΠΌΠΎΠ²ΠΊΠ°: 20-40%
- ΠΠ»Π°ΠΆΠ½Π°Ρ ΡΠΏΠ°ΠΊΠΎΠ²ΠΊΠ° Π² Π²Π°ΠΊΡΡΠΌΠ½ΡΡ ΠΌΠ΅ΡΠΊΠ°Ρ : 40-55%
- ΠΠ½ΡΡΠ·ΠΈΡ: 40-55%
- ΠΡΠ΅Π΄Π²Π°ΡΠΈΡΠ΅Π»ΡΠ½Π°Ρ ΠΏΠΎΠ΄Π³ΠΎΡΠΎΠ²ΠΊΠ°: 50-70%
ΠΠ»ΠΎΡΠ½ΠΎΡΡΡ Π·Π΄Π΅ΡΡ ΠΈΠΌΠ΅Π΅Ρ Π±ΠΎΠ»ΡΡΠΎΠ΅ Π·Π½Π°ΡΠ΅Π½ΠΈΠ΅, ΠΏΠΎΡΡΠΎΠΌΡ Π’ΠΈΠΏΡ ΠΈΡΠΏΠΎΠ»ΡΠ·ΡΠ΅ΠΌΡΡ
ΠΌΠ°ΡΠ΅ΡΠΈΠ°Π»ΠΎΠ² Π±ΡΠ΄ΡΡ ΠΈΠΌΠ΅ΡΡ Π±ΠΎΠ»ΡΡΠΎΠ΅ Π²Π»ΠΈΡΠ½ΠΈΠ΅ Π½Π° ΠΎΡΠ½ΠΎΡΠΈΡΠ΅Π»ΡΠ½ΡΠ΅ ΠΎΠ±ΡΠ΅ΠΌΠ½ΡΠ΅ Π΄ΠΎΠ»ΠΈ Π²ΠΎΠ»ΠΎΠΊΠ½Π°.
Π£Π³Π»Π΅ΡΠΎΠ΄Π½ΡΠ΅ Π²ΠΎΠ»ΠΎΠΊΠ½Π° ΠΈΠΌΠ΅ΡΡ Π±ΠΎΠ»Π΅Π΅ Π½ΠΈΠ·ΠΊΡΡ ΠΏΠ»ΠΎΡΠ½ΠΎΡΡΡ, ΡΠ΅ΠΌ ΡΡΠ΅ΠΊΠ»ΠΎ, ΠΏΠΎΡΡΠΎΠΌΡ Π΄Π»Ρ Π΄Π°Π½Π½ΠΎΠΉ ΠΌΠ°ΡΡΠΎΠ²ΠΎΠΉ Π΄ΠΎΠ»ΠΈ Π²ΠΎΠ»ΠΎΠΊΠ½Π° — ΡΠΊΠ°ΠΆΠ΅ΠΌ, 50% — ΠΎΠ±ΡΠ΅ΠΌΠ½Π°Ρ Π΄ΠΎΠ»Ρ Π²ΠΎΠ»ΠΎΠΊΠ½Π° Π±ΡΠ΄Π΅Ρ Π½Π°ΠΌΠ½ΠΎΠ³ΠΎ Π²ΡΡΠ΅ Π΄Π»Ρ ΡΠ³Π»Π΅ΡΠΎΠ΄Π° (40%), ΡΠ΅ΠΌ Π΄Π»Ρ ΡΠ»Π΅ΠΊΡΡΠΎΠ½Π½ΠΎΠ³ΠΎ ΡΡΠ΅ΠΊΠ»Π° (30%). Π’Π°ΠΊΠΈΠΌ ΠΎΠ±ΡΠ°Π·ΠΎΠΌ, ΠΏΡΠΈ ΡΠΎΠΉ ΠΆΠ΅ ΠΎΠ±ΡΠ΅ΠΌΠ½ΠΎΠΉ Π΄ΠΎΠ»Π΅ Π²ΠΎΠ»ΠΎΠΊΠ½Π° ΠΌΠ½ΠΎΠ³ΠΎΡΠ»ΠΎΠΉΠ½ΡΠ΅ ΡΡΠ΅ΠΊΠ»ΠΎΠ²ΠΎΠ»ΠΎΠΊΠ½Π° Π±ΡΠ΄ΡΡ ΠΈΠΌΠ΅ΡΡ Π±ΠΎΠ»Π΅Π΅ Π²ΡΡΠΎΠΊΠΎΠ΅ ΠΎΡΠ½ΠΎΡΠΈΡΠ΅Π»ΡΠ½ΠΎΠ΅ ΡΠΎΠ΄Π΅ΡΠΆΠ°Π½ΠΈΠ΅ Π²ΠΎΠ»ΠΎΠΊΠ½Π° ΠΏΠΎ ΠΌΠ°ΡΡΠ΅. Π£Π³Π»Π΅ΡΠΎΠ΄Π½ΡΠ΅ Π²ΠΎΠ»ΠΎΠΊΠ½Π°, ΠΊΠ°ΠΊ ΠΏΡΠ°Π²ΠΈΠ»ΠΎ, ΠΌΠ΅Π½ΡΡΠ΅ Π² Π΄ΠΈΠ°ΠΌΠ΅ΡΡΠ΅, ΡΠ΅ΠΌ ΡΠ»Π΅ΠΊΡΡΠΎΠ½Π½ΠΎΠ΅ ΡΡΠ΅ΠΊΠ»ΠΎ, ΠΏΠΎΡΡΠΎΠΌΡ ΡΠΏΠ°ΠΊΠΎΠ²ΠΊΠ° ΠΌΠΎΠΆΠ΅Ρ Π±ΡΡΡ Π±ΠΎΠ»Π΅Π΅ ΠΏΠ»ΠΎΡΠ½ΠΎΠΉ, ΡΡΠΎ Π΄Π°Π΅Ρ Π±ΠΎΠ»Π΅Π΅ Π²ΡΡΠΎΠΊΡΡ ΠΎΠ±ΡΠ΅ΠΌΠ½ΡΡ Π΄ΠΎΠ»Ρ.
ΠΡΠ΅Π½ΠΊΠ° ΡΠΎΠ»ΡΠΈΠ½Ρ Π»Π°ΠΌΠΈΠ½Π°ΡΠ°
ΠΠ½Π°Ρ ΠΏΡΠΈΠ±Π»ΠΈΠ·ΠΈΡΠ΅Π»ΡΠ½ΡΡ ΠΎΠ±ΡΠ΅ΠΌΠ½ΡΡ Π΄ΠΎΠ»Ρ Π²ΠΎΠ»ΠΎΠΊΠ½Π°, ΠΌΠΎΠΆΠ½ΠΎ Π΄ΠΎΠ²ΠΎΠ»ΡΠ½ΠΎ ΡΠΎΡΠ½ΠΎ ΠΎΡΠ΅Π½ΠΈΡΡ ΡΠΎΠ»ΡΠΈΠ½Ρ Π»Π°ΠΌΠΈΠ½Π°ΡΠ°.Π§Π΅ΠΌ Π²ΡΡΠ΅ ΠΎΠ±ΡΠ΅ΠΌΠ½Π°Ρ Π΄ΠΎΠ»Ρ Π²ΠΎΠ»ΠΎΠΊΠ½Π° (ΠΎΡΠ½ΡΠ½Π΅ FVF!), Π’Π΅ΠΌ ΠΌΠ΅Π½ΡΡΠ΅ ΡΠΌΠΎΠ»Ρ Π² Π»Π°ΠΌΠΈΠ½Π°ΡΠ΅ ΠΈ ΡΠ΅ΠΌ ΡΠΎΠ½ΡΡΠ΅ ΠΎΠ½ Π±ΡΠ΄Π΅Ρ. Π ΡΠ°Π±Π»ΠΈΡΠ΅ Π½ΠΈΠΆΠ΅ ΠΏΠΎΠΊΠ°Π·Π°Π½ΠΎ, ΠΊΠ°ΠΊ 1000 Π³ ΡΠ»Π΅ΠΊΡΡΠΎΠ½Π½ΠΎΠ³ΠΎ ΡΡΠ΅ΠΊΠ»Π° ΠΏΡΠΈ FVF 0,5 Π½Π° 0,1 ΠΌΠΌ ΡΠΎΠ½ΡΡΠ΅, ΡΠ΅ΠΌ ΡΠ΅ ΠΆΠ΅ 1000 Π³ ΠΌΠ°ΡΠ΅ΡΠΈΠ°Π»Π° Ρ FVF 0,4.
ΠΠ½ΠΈ Π»ΠΈΠ½Π΅ΠΉΠ½Ρ ΠΈ, Π·Π° ΠΈΡΠΊΠ»ΡΡΠ΅Π½ΠΈΠ΅ΠΌ ΠΎΡΠ΅Π½Ρ ΡΠΎΠ½ΠΊΠΈΡ Π»Π°ΠΌΠΈΠ½Π°ΡΠΎΠ², Π΄ΠΎΠ»ΠΆΠ½Ρ ΠΎΡΡΠ°Π²Π°ΡΡΡΡ Π΄ΠΎΡΡΠ°ΡΠΎΡΠ½ΠΎ ΡΠΎΡΠ½ΡΠΌΠΈ. ΠΡ ΠΌΠΎΠΆΠ΅ΡΠ΅ ΠΎΡΠ΅Π½ΠΈΡΡ, ΡΡΠΎ 10 ΠΌΠΌ ΡΠ³Π»Π΅ΡΠΎΠ΄Π° ΠΏΡΠΈ 0,5 FVF Π±ΡΠ΄ΡΡ ΡΠΎΠ»ΡΠΈΠ½ΠΎΠΉ 11 ΠΌΠΌ. ΠΠ»Ρ Π½Π°ΡΡΠΎΡΠ½Π½ΠΎΠ³ΠΎ ΡΠ³Π»Ρ ΠΈ ΡΠ³Π»Ρ Π΄ΠΎ ΠΏΡΠ΅Π³Π°ΡΠ° Ρ Π²ΡΠ΅Π³Π΄Π° ΠΈΡΠΏΠΎΠ»ΡΠ·ΠΎΠ²Π°Π» ΠΏΡΠ°Π²ΠΈΠ»ΠΎ Β«1000 Π³ Π½Π° ΠΌΠΈΠ»Π»ΠΈΠΌΠ΅ΡΡΒ» Π΄Π»Ρ ΠΎΡΠ΅Π½ΠΊΠΈ — ΠΈ ΠΎΠ½ΠΎ ΠΎΠ±ΡΡΠ½ΠΎ Π΄ΠΎΠ²ΠΎΠ»ΡΠ½ΠΎ Π±Π»ΠΈΠ·ΠΊΠΎ.
Π£Π³Π»Π΅ΡΠΎΠ΄ Π²Π΅Π΄Π΅Ρ ΡΠ΅Π±Ρ ΡΠ°ΠΊ ΠΆΠ΅, Π½ΠΎ Π΄ΠΈΠ°Π³ΡΠ°ΠΌΠΌΠ° ΠΏΠΎΠΊΠ°Π·ΡΠ²Π°Π΅Ρ Π±ΠΎΠ»Π΅Π΅ Π²ΡΡΠΎΠΊΠΈΠΉ ΠΎΠ±ΡΠΈΠΉ Π΄ΠΈΠ°ΠΏΠ°Π·ΠΎΠ½ FVF Π΄Π»Ρ ΡΠ³Π»Π΅ΡΠΎΠ΄Π°. Π― ΡΠ°Π±ΠΎΡΠ°Ρ Π½Π°Π΄ ΠΈΡ ΠΎΡΠ΅Π½ΠΊΠ°ΠΌΠΈ Π΄Π»Ρ Π±ΠΎΠ»Π΅Π΅ ΡΠΈΡΠΎΠΊΠΎΠ³ΠΎ Π΄ΠΈΠ°ΠΏΠ°Π·ΠΎΠ½Π° ΠΎΠ±ΡΠ΅ΠΌΠ½ΡΡ ΡΡΠ°ΠΊΡΠΈΠΉ Π²ΠΎΠ»ΠΎΠΊΠΎΠ½ ΠΈ ΠΌΠ°ΡΠ΅ΡΠΈΠ°Π»ΠΎΠ²!
ΠΠ°ΠΏΡΠ°Π²Π»Π΅Π½Π½ΠΎΡΡΡ Π²ΠΎΠ»ΠΎΠΊΠ½Π°
ΠΠ»Ρ Π΄Π°Π½Π½ΠΎΠΉ ΠΏΠ»Π°ΡΡΠΈΠ½Ρ — ΠΈΠ»ΠΈ ΠΆΠ³ΡΡΠ°, ΠΏΡΡΠΆΠΈ ΠΈΠ»ΠΈ Π΄Π°ΠΆΠ΅ ΠΎΡΠ΄Π΅Π»ΡΠ½ΠΎΠ³ΠΎ Π²ΠΎΠ»ΠΎΠΊΠ½Π° — ΡΠ²ΠΎΠΉΡΡΠ²Π° ΠΊΠΎΠΌΠΏΠΎΠ·ΠΈΡΠ° Π·Π°Π²ΠΈΡΡΡ ΠΎΡ Π½Π°ΠΏΡΠ°Π²Π»Π΅Π½ΠΈΡ Π²ΠΎΠ»ΠΎΠΊΠ½Π°. Π Π½Π°ΠΏΡΠ°Π²Π»Π΅Π½ΠΈΠΈ Π²ΠΎΠ»ΠΎΠΊΠΎΠ½ ΠΊΠΎΠΌΠΏΠΎΠ·ΠΈΡ Π·Π½Π°ΡΠΈΡΠ΅Π»ΡΠ½ΠΎ Π²ΡΠΈΠ³ΡΠ°Π΅Ρ ΠΎΡ ΠΌΠ΅Ρ Π°Π½ΠΈΡΠ΅ΡΠΊΠΈΡ ΡΠ²ΠΎΠΉΡΡΠ² Π²ΠΎΠ»ΠΎΠΊΠ½Π°.ΠΠΎΡΠΊΠΎΠ»ΡΠΊΡ Π½Π°ΠΏΡΠ°Π²Π»Π΅Π½ΠΈΠ΅ Π½Π°Π³ΡΡΠ·ΠΊΠΈ ΠΎΡΠΊΠ»ΠΎΠ½ΡΠ΅ΡΡΡ ΠΎΡ Π½Π°ΠΏΡΠ°Π²Π»Π΅Π½ΠΈΡ Π²ΠΎΠ»ΠΎΠΊΠ½Π°, Π²ΠΎΠ»ΠΎΠΊΠ½ΠΎ ΡΡΠ°Π½ΠΎΠ²ΠΈΡΡΡ ΠΌΠ΅Π½Π΅Π΅ Π²Π°ΠΆΠ½ΡΠΌ. Π ΠΊΠΎΠ½ΡΠ΅ ΠΊΠΎΠ½ΡΠΎΠ², Π²ΡΡ ΡΠ°Π±ΠΎΡΡ Π΄Π΅Π»Π°Π΅Ρ ΠΏΡΠΎΡΡΠΎ ΠΌΠ°ΡΡΠΈΡΠ° ΠΈΠ· ΡΠΌΠΎΠ»Ρ!
ΠΡΠ΅Π΄ΡΡΠ°Π²ΡΡΠ΅ ΡΠ΅Π±Π΅ ΠΆΠ΅ΡΡΠΊΠΎΡΡΡ, Π½Π°ΠΏΡΠΈΠΌΠ΅Ρ … Π²ΠΎΡ ΠΏΠΎΡΠΌΠΎΡΡΠΈΡΠ΅, ΠΊΠ°ΠΊ Π²ΠΎΠΎΠ±ΡΠ°ΠΆΠ°Π΅ΠΌΠΎΠ΅ Π²ΠΎΠ»ΠΎΠΊΠ½ΠΎ Π²Π»ΠΈΡΠ΅Ρ Π½Π° Π»Π°ΠΌΠΈΠ½Π°Ρ ΠΏΠΎΠ΄ Π½Π°Π³ΡΡΠ·ΠΊΠΎΠΉ. ΠΠΎΠ³Π΄Π° ΡΠ³ΠΎΠ» Π½Π°Π³ΡΡΠ·ΠΊΠΈ ΠΈΠ·ΠΌΠ΅Π½ΡΠ΅ΡΡΡ ΠΎΡΠ½ΠΎΡΠΈΡΠ΅Π»ΡΠ½ΠΎ ΠΎΡΠΈ Π²ΠΎΠ»ΠΎΠΊΠ½Π°, Π΄ΠΎΠ»Ρ ΠΏΠΎΡΠ΅Π½ΡΠΈΠ°Π»ΡΠ½ΠΎΠΉ ΠΆΠ΅ΡΡΠΊΠΎΡΡΠΈ ΡΠ΅Π·ΠΊΠΎ ΠΏΠ°Π΄Π°Π΅Ρ — Π±ΡΡΡΡΠΎ!
ΠΠ²Π°Π·ΠΈΠΈΠ·ΠΎΡΡΠΎΠΏΠ½ΡΠΉ Π»Π°ΠΌΠΈΠ½Π°Ρ — Β«Π§Π΅ΡΠ½ΡΠΉ Π°Π»ΡΠΌΠΈΠ½ΠΈΠΉΒ»
ΠΠΏΡΠ΅Π΄Π΅Π»Π΅Π½ΠΈΠ΅: Π»Π°ΠΌΠΈΠ½Π°Ρ Ρ ΡΠ°Π²Π½ΡΠΌ Π²Π΅ΡΠΎΠΌ Π²ΠΎΠ»ΠΎΠΊΠ½Π°, Π½Π°ΠΏΡΠ°Π²Π»Π΅Π½Π½ΡΠΌ Π² ΠΊΠ°ΠΆΠ΄ΠΎΠΌ Π½Π°ΠΏΡΠ°Π²Π»Π΅Π½ΠΈΠΈ, ΠΎΠ±ΡΡΠ½ΠΎ ΠΎΠ³ΡΠ°Π½ΠΈΡΠ΅Π½Π½ΡΠΌ ΠΊΠ°ΠΆΠ΄ΡΠ΅ 30, 45 ΠΈΠ»ΠΈ 60 Π³ΡΠ°Π΄ΡΡΠΎΠ².
ΠΠ΄Π½Π° ΠΈΠ· Π·Π°ΠΌΠ΅ΡΠ°ΡΠ΅Π»ΡΠ½ΡΡ ΠΎΡΠΎΠ±Π΅Π½Π½ΠΎΡΡΠ΅ΠΉ Π²ΠΎΠ»ΠΎΠΊΠΎΠ½Π½ΠΎΠ³ΠΎ Π°ΡΠΌΠΈΡΠΎΠ²Π°Π½ΠΈΡ Π² ΠΊΠΎΠΌΠΏΠΎΠ·ΠΈΡΠ°Ρ Π·Π°ΠΊΠ»ΡΡΠ°Π΅ΡΡΡ Π² ΡΠΎΠΌ, ΡΡΠΎ Π²Ρ ΠΌΠΎΠΆΠ΅ΡΠ΅ Π½Π°ΠΏΡΠ°Π²Π»ΡΡΡ ΠΈΡ Π² Π»ΡΠ±ΠΎΠΌ Π½Π°ΠΏΡΠ°Π²Π»Π΅Π½ΠΈΠΈ — ΡΠΎΠΊΡΡΠΈΡΡΡ ΡΠΈΠ»Ρ Π΄Π΅ΡΠ°Π»Π΅ΠΉ Π½Π° Π²ΡΡΠ°Π²Π½ΠΈΠ²Π°Π½ΠΈΠ΅ Π½Π°Π³ΡΡΠ·ΠΎΠΊ. ΠΠ½ΠΎΠ³Π΄Π° Π²Π°ΠΌ ΠΏΡΠΎΡΡΠΎ Π½ΡΠΆΠ½Π° ΠΊΠΎΠΌΠΏΠΎΠ·ΠΈΡΠ½Π°Ρ ΠΏΠ°Π½Π΅Π»Ρ Ρ ΠΎΠ΄ΠΈΠ½Π°ΠΊΠΎΠ²ΠΎΠΉ ΠΏΡΠΎΡΠ½ΠΎΡΡΡΡ Π²ΠΎ Π²ΡΠ΅Ρ Π½Π°ΠΏΡΠ°Π²Π»Π΅Π½ΠΈΡΡ — ΠΈ ΡΡΠΎ Π½Π° ΡΠ°ΠΌΠΎΠΌ Π΄Π΅Π»Π΅ Π΄ΠΎΠ²ΠΎΠ»ΡΠ½ΠΎ ΡΠ»ΠΎΠΆΠ½ΠΎ. ΠΠ½ΠΆΠ΅Π½Π΅ΡΡ ΠΈ Π΄ΠΈΠ·Π°ΠΉΠ½Π΅ΡΡ ΠΎΠ±ΡΡΠ½ΠΎ Π΄ΠΎΠ±ΠΈΠ²Π°ΡΡΡΡ ΠΏΠΎΠ»ΡΡΠ΅Π½ΠΈΡ ΡΡΠΈΡ Β«ΠΊΠ²Π°Π·ΠΈΠΈΠ·ΠΎΡΡΠΎΠΏΠ½ΡΡ Β» Π»Π°ΠΌΠΈΠ½Π°ΡΠΎΠ², ΡΠΊΠ»Π°Π΄ΡΠ²Π°Ρ ΡΠ»ΠΎΠΈ ΠΎΠ΄ΠΈΠ½Π°ΠΊΠΎΠ²ΠΎ Π²ΠΎ Π²ΡΠ΅Ρ Π½Π°ΠΏΡΠ°Π²Π»Π΅Π½ΠΈΡΡ . ΠΠΎΡΠΊΠΎΠ»ΡΠΊΡ ΡΠ»ΠΎΠΈ Π½Π΅ ΠΌΠΎΠ³ΡΡ Π±ΡΡΡ Π±Π΅ΡΠΊΠΎΠ½Π΅ΡΠ½ΠΎ ΡΠΎΠ½ΠΊΠΈΠΌΠΈ — Π½Π΅Π²ΠΎΠ·ΠΌΠΎΠΆΠ½ΠΎ ΠΏΠΎΠ»ΡΡΠΈΡΡ ΠΎΠ΄ΠΈΠ½Π°ΠΊΠΎΠ²ΠΎΠ΅ ΠΊΠΎΠ»ΠΈΡΠ΅ΡΡΠ²ΠΎ Π²ΠΎΠ»ΠΎΠΊΠΎΠ½ Π½Π° ΠΊΠ°ΠΆΠ΄ΠΎΠΉ ΡΡΠ΅ΠΏΠ΅Π½ΠΈ Π»Π°ΠΌΠΈΠ½Π°ΡΠ° — ΡΠ°ΠΊ ΡΡΠΎ Π²Ρ ΠΏΡΠΈΠ±Π»ΠΈΠ·ΠΈΡΠ΅Π»ΡΠ½ΠΎ!
ΠΡΠΈ ΠΏΡΠΈΡΠ°ΡΠ΅Π½ΠΈΠΈ 45 Π³ΡΠ°Π΄ΡΡΠΎΠ² ΠΏΡΠΈΠ±Π»ΠΈΠ·ΠΈΡΠ΅Π»ΡΠ½ΠΎΠ³ΠΎ Π²ΠΎΠ»ΠΎΠΊΠ½Π° Π² ΠΊΠ°ΠΆΠ΄ΠΎΠΌ Π½Π°ΠΏΡΠ°Π²Π»Π΅Π½ΠΈΠΈ Π΄ΠΎΡΡΠ°ΡΠΎΡΠ½ΠΎ, ΡΡΠΎΠ±Ρ Π΄Π°ΡΡ ΠΎΠ΄Π½ΠΎΡΠΎΠ΄Π½ΡΡ Β«ΠΏΡΠΎΡΠ½ΠΎΡΡΡΒ» (ΠΈΠ»ΠΈ ΠΆΠ΅ΡΡΠΊΠΎΡΡΡ, ΠΈΠ»ΠΈ ΡΡΠΎ-ΡΠΎ Π΅ΡΠ΅) Π² Π»ΡΠ±ΠΎΠΌ Π½Π°ΠΏΡΠ°Π²Π»Π΅Π½ΠΈΠΈ.ΠΡΠΎΡ Π³ΡΠ°ΡΠΈΠΊ ΠΏΡΠ΅Π΄ΡΡΠ°Π²Π»ΡΠ΅Ρ ΡΠΎΠ±ΠΎΠΉ ΠΊΡΠΈΠ²ΡΡ Π½Π°ΠΏΡΠ°Π²Π»Π΅Π½Π½ΠΎΡΡΠΈ Π²ΠΎΠ»ΠΎΠΊΠ½Π° ΡΠ²Π΅ΡΡ Ρ, ΠΎΡΡΠ°ΠΆΠ΅Π½Π½ΡΡ ΠΎΡΠ½ΠΎΡΠΈΡΠ΅Π»ΡΠ½ΠΎ ΠΎΡΠΈ ΠΈ ΠΏΠΎΠ²Π΅ΡΠ½ΡΡΡΡ Π½Π° 45 Π³ΡΠ°Π΄ΡΡΠΎΠ².
ΠΠΎΠ»ΠΎΠΊΠΎΠ½Π½ΠΎ Β«Π§Π°ΡΡΒ»
ΠΡΠ΅Π΄ΡΡΠ°Π²ΡΡΠ΅, ΡΡΠΎ Π²Ρ ΠΊΠ»Π°Π΄Π΅ΡΠ΅ ΡΠ»ΠΎΠΈ ΠΌΠ°ΡΠ΅ΡΠΈΠ°Π»Π° Π½Π° (12-ΡΠ°ΡΠΎΠ²ΠΎΠΉ) ΡΠΈΡΠ΅ΡΠ±Π»Π°Ρ. ΠΡΠΈΠ΅Π½ΡΠ°ΡΠΈΡ Π²ΠΎΠ»ΠΎΠΊΠ½Π° ΠΏΠΎΠ΄ Π½ΡΠ»Π΅Π²ΡΠΌ Π³ΡΠ°Π΄ΡΡΠΎΠΌ Π±ΡΠ΄Π΅Ρ ΠΈΠΌΠ΅ΡΡ ΠΎΡΠΈΠ΅Π½ΡΠ°ΡΠΈΡ ΠΎΡ 6 Π΄ΠΎ 12. 90 Π³ΡΠ°Π΄ΡΡΠΎΠ² Π±ΡΠ΄Π΅Ρ ΠΎΡ 9 Π΄ΠΎ 3. ΠΡ ΠΌΠΎΠΆΠ΅ΡΠ΅ ΠΏΡΠΎΡΡΠΎ ΡΠ»ΠΎΠΆΠΈΡΡ ΠΏΠΎΠ»ΠΎΠ²ΠΈΠ½Ρ Π²ΠΎΠ»ΠΎΠΊΠ½Π° ΠΏΠΎΠ΄ ΡΠ³Π»ΠΎΠΌ 0 Π³ΡΠ°Π΄ΡΡΠΎΠ², Π° ΠΏΠΎΠ»ΠΎΠ²ΠΈΠ½Ρ Π²ΠΎΠ»ΠΎΠΊΠ½Π° ΠΏΠΎΠ΄ ΡΠ³Π»ΠΎΠΌ 90 — ΠΈ Π²Ρ ΠΏΠΎΠ»ΡΡΠΈΡΠ΅ Π»Π°ΠΌΠΈΠ½Π°Ρ, ΠΊΠΎΡΠΎΡΡΠΉ Π±ΡΠ΄Π΅Ρ ΠΈΠΌΠ΅ΡΡ ΠΎΠ΄ΠΈΠ½Π°ΠΊΠΎΠ²ΡΡ ΠΏΡΠΎΡΠ½ΠΎΡΡΡ Π² ΠΎΠ±ΠΎΠΈΡ Π½Π°ΠΏΡΠ°Π²Π»Π΅Π½ΠΈΡΡ , Π½ΠΎ Π΅ΡΠ»ΠΈ Π²Ρ ΠΏΠΎΡΡΠ½Π΅ΡΠ΅ Π΅Π³ΠΎ Π² Π Π½Π°ΠΏΡΠ°Π²Π»Π΅Π½ΠΈΠΈ Ρ 4:30 Π΄ΠΎ 10:30 Π²Ρ Π±ΡΠ΄Π΅ΡΠ΅ ΠΏΡΠΈΠΊΠ»Π°Π΄ΡΠ²Π°ΡΡ Π½Π°Π³ΡΡΠ·ΠΊΡ ΠΏΠΎΠ΄ ΡΠ³Π»ΠΎΠΌ 45 Π³ΡΠ°Π΄ΡΡΠΎΠ² ΠΊ ΠΎΠ±Π΅ΠΈΠΌ ΡΡΠΎΠΏΠΊΠ°ΠΌ Π²ΠΎΠ»ΠΎΠΊΠΎΠ½, ΠΈ Π½ΠΈ ΠΎΠ΄ΠΈΠ½ ΠΈΠ· Π½ΠΈΡ Π½Π΅ ΡΠΌΠΎΠΆΠ΅Ρ ΡΠΏΡΠ°Π²ΠΈΡΡΡΡ Ρ ΡΡΠΎΠΉ Π½Π°Π³ΡΡΠ·ΠΊΠΎΠΉ.Π Π΅ΡΠ΅Π½ΠΈΠ΅: ΠΏΡΠΈΠΌΠ΅Π½ΡΠΉΡΠ΅ ΡΡΠ΅ΠΊΠΈ Ρ ΡΠ°Π³ΠΎΠΌ 45 Π³ΡΠ°Π΄ΡΡΠΎΠ², Π° Π½Π΅ Ρ ΡΠ°Π³ΠΎΠΌ 90 Π³ΡΠ°Π΄ΡΡΠΎΠ²! ΠΡΠ°ΠΊ, ΡΠ΅ΠΏΠ΅ΡΡ Ρ Π²Π°ΡΠΈΡ ΡΠ°ΡΠΎΠ² ΠΌΠ°ΡΠ΅ΡΠΈΠ°Π»Π° ΠΊΠ°ΠΆΠ΄ΡΠΉ: Ρ 6 Π΄ΠΎ 12, Ρ 9 Π΄ΠΎ 3, Ρ 10:30 Π΄ΠΎ 4:30 ΠΈ Ρ 7:30 Π΄ΠΎ 1:30. Π ΡΠ΅ΠΏΠ΅ΡΡ Π²ΠΎΠ»ΠΎΠΊΠ½ΠΎ ΡΠ°ΡΠΏΠΎΠ»ΠΎΠΆΠ΅Π½ΠΎ ΠΎΡΠ½ΠΎΡΠΈΡΠ΅Π»ΡΠ½ΠΎ Π±Π»ΠΈΠ·ΠΊΠΎ (ΠΌΠΈΠ½ΠΈΠΌΡΠΌ 22,5 Π³ΡΠ°Π΄ΡΡΠ°) ΠΊ Π»ΡΠ±ΠΎΠΌΡ ΠΏΠΎΡΠ΅Π½ΡΠΈΠ°Π»ΡΠ½ΠΎΠΌΡ Π½Π°ΠΏΡΠ°Π²Π»Π΅Π½ΠΈΡ Π½Π°Π³ΡΡΠ·ΠΊΠΈ. Π Π½Π°ΠΌ Π»ΡΡΡΠ΅ ΠΏΠ΅ΡΠ΅Π²Π΅ΡΡΠΈ ΡΡΠΎ Π½Π° ΡΠ³Π»Ρ ΠΎΡΠΈΠ΅Π½ΡΠ°ΡΠΈΠΈ Π²ΠΎΠ»ΠΎΠΊΠΎΠ½ ΠΈ ΠΏΡΠ΅ΠΊΡΠ°ΡΠΈΡΡ ΠΈΡΠΏΠΎΠ»ΡΠ·ΠΎΠ²Π°ΡΡ ΡΠΈΡΠ΅ΡΠ±Π»Π°Ρ Π΄Π»Ρ ΡΠΏΡΠ°Π²ΠΊΠΈ!
Π’ΠΈΠΏΠΈΡΠ½ΡΠ΅ Β«ΠΎΠΏΡΠΎΠ²ΠΎΠ»ΠΎΠΊΠΎΠ½Π½ΡΠ΅ ΡΠ°ΡΡΒ», ΠΊΠΎΡΠΎΡΡΠ΅ Π²Ρ ΠΌΠΎΠΆΠ΅ΡΠ΅ ΡΠ²ΠΈΠ΄Π΅ΡΡ Π½Π° ΡΠΈΡΡΠ½ΠΊΠ΅.
Π§ΡΠΎ Π²Ρ ΠΌΠΎΠΆΠ΅ΡΠ΅ Π½Π°ΡΠΈΡΠΎΠ²Π°ΡΡ, ΡΡΠΎΠ±Ρ ΡΠ±Π΅Π΄ΠΈΡΡΡΡ, ΡΡΠΎ Π²Ρ ΠΏΡΠ°Π²ΠΈΠ»ΡΠ½ΠΎ Π»Π°ΠΌΠΈΠ½ΠΈΡΡΠ΅ΡΠ΅ ΡΠ²ΠΎΡ Π΄Π΅ΡΠ°Π»Ρ!ΠΡΠ°ΠΊ, ΠΊΠ°ΠΊ ΠΌΡ ΡΠ°ΠΌ Π½Π΅ΠΌΠ½ΠΎΠ³ΠΎ ΠΎΠ±ΡΡΠΆΠ΄Π°Π»ΠΈ, Π±Π°Π·ΠΎΠ²ΡΠΉ ΠΊΠ²Π°Π·ΠΈΠΈΠ·ΠΎΡΡΠΎΠΏΠ½ΡΠΉ (Β«ΠΊΠ²Π°Π·ΠΈΒ», ΠΏΠΎΡΠΎΠΌΡ ΡΡΠΎ ΡΡΠΎ ΡΠΎΠ»ΡΠΊΠΎ ΠΏΡΠΈΠ±Π»ΠΈΠΆΠ΅Π½ΠΈΠ΅ Π² ΠΎΠ΄Π½ΠΎΠΉ ΠΏΠ»ΠΎΡΠΊΠΎΡΡΠΈ — Π² ΠΎΡΠ»ΠΈΡΠΈΠ΅, ΡΠΊΠ°ΠΆΠ΅ΠΌ, ΠΎΡ Π°Π»ΡΠΌΠΈΠ½ΠΈΡ) Π»Π°ΠΌΠΈΠ½Π°Ρ ΠΌΠΎΠΆΠ΅Ρ ΠΈΠΌΠ΅ΡΡ ΡΠ°Π²Π½ΠΎΠ΅ ΠΊΠΎΠ»ΠΈΡΠ΅ΡΡΠ²ΠΎ Π²ΠΎΠ»ΠΎΠΊΠ½Π° Π½Π° ΠΊΠ°ΠΆΠ΄ΠΎΠΌ ΡΠ°Π³Π΅ Π²ΠΎΠ»ΠΎΠΊΠ½Π° Π½Π° 45 Π³ΡΠ°Π΄ΡΡΠΎΠ². Β«Π§Π°ΡΡΒ» — Π²ΠΎΡ ΡΠ°ΠΊ: 0, + 45,90, -45.
ΠΡΠ»ΠΈ ΠΌΠΎΠΆΠ΅ΡΠ΅, ΡΠΎ ΠΏΡΠΈΡΠ°ΡΠ΅Π½ΠΈΠ΅ ΡΠ³Π»Π° ΠΌΠΎΠΆΠ½ΠΎ ΡΠΌΠ΅Π½ΡΡΠΈΡΡ Π΄ΠΎ 30 Π³ΡΠ°Π΄ΡΡΠΎΠ²: 0,30,60,90,120,150 — ΠΈΠ»ΠΈ Π΄ΡΡΠ³ΠΎΠ³ΠΎ ΠΏΡΠΎΠΈΠ·Π²ΠΎΠ»ΡΠ½ΠΎΠ³ΠΎ ΡΠΈΡΠ»Π°. ΠΠ±ΡΠ°Ρ ΡΠΎΠ»ΡΠΈΠ½Π° ΠΏΠ°Π½Π΅Π»ΠΈ Π΄ΠΎΠ»ΠΆΠ½Π° ΡΠΎΡΡΠΎΡΡΡ ΠΈΠ· ΠΏΠΎΠ»Π½ΡΡ ΠΊΠΎΠΌΠ±ΠΈΠ½Π°ΡΠΈΠΉ ΡΡΠΎΠΏΠΎΠΊ Β«QIΒ» — ΠΏΠΎΡΠΎΠΌΡ ΡΡΠΎ, Π΅ΡΠ»ΠΈ Π²Ρ ΠΎΡΡΠ°Π²ΠΈΡΠ΅ Π½Π΅ΠΊΠΎΡΠΎΡΡΠ΅ ΠΈΠ· Π½ΠΈΡ Π² ΠΏΠΎΡΠ»Π΅Π΄Π½Π΅ΠΉ ΡΡΠΎΠΏΠΊΠ΅, Π² Π»Π°ΠΌΠΈΠ½Π°ΡΠ΅ Π±ΡΠ΄Π΅Ρ Π½Π΅ΡΠ°Π²Π½ΠΎΠ΅ ΠΊΠΎΠ»ΠΈΡΠ΅ΡΡΠ²ΠΎ Π²ΠΎΠ»ΠΎΠΊΠΎΠ½ Π²ΠΎ Π²ΡΠ΅Ρ Π½Π°ΠΏΡΠ°Π²Π»Π΅Π½ΠΈΡΡ ! Π ΠΏΠΎΡΠΊΠΎΠ»ΡΠΊΡ ΠΏΠΎΡΡΠ΄ΠΎΠΊ ΡΠΊΠ»Π°Π΄ΠΊΠΈ ΠΈΠΌΠ΅Π΅Ρ Π·Π½Π°ΡΠ΅Π½ΠΈΠ΅, Π° ΡΠ»ΠΎΠΈ ΠΌΠΎΠ³ΡΡ ΠΈΠΌΠ΅ΡΡ ΠΎΠ±ΡΠ΅Π΅ Π²Π»ΠΈΡΠ½ΠΈΠ΅ Π½Π° ΡΡΠ°Π±ΠΈΠ»ΡΠ½ΠΎΡΡΡ Π»Π°ΠΌΠΈΠ½Π°ΡΠ°, ΡΠ΅ΠΏΠ΅ΡΡ ΠΌΡ ΡΠ°ΡΡΠΌΠΎΡΡΠΈΠΌ ΠΈΠ΄Π΅Ρ Β«ΡΠ±Π°Π»Π°Π½ΡΠΈΡΠΎΠ²Π°Π½Π½ΠΎΠ³ΠΎΒ» ΠΈ Β«ΡΠΈΠΌΠΌΠ΅ΡΡΠΈΡΠ½ΠΎΠ³ΠΎΒ» Π»Π°ΠΌΠΈΠ½Π°ΡΠ°.
Π‘ΠΈΠΌΠΌΠ΅ΡΡΠΈΡΠ½ΡΠΉ ΠΈ ΡΠ±Π°Π»Π°Π½ΡΠΈΡΠΎΠ²Π°Π½Π½ΡΠΉ Π»Π°ΠΌΠΈΠ½Π°Ρ
Π Π°ΡΠΏΠΎΠ»ΠΎΠΆΠ΅Π½ΠΈΠ΅ ΠΎΠΏΡΠ΅Π΄Π΅Π»Π΅Π½Π½ΠΎΠ³ΠΎ ΡΠ»ΠΎΡ Π² Π»Π°ΠΌΠΈΠ½Π°ΡΠ΅ Π²Π»ΠΈΡΠ΅Ρ Π½Π° ΡΠΎ, ΠΊΠ°ΠΊ ΠΎΠ½ Π²Π»ΠΈΡΠ΅Ρ Π½Π° ΠΏΠΎΠ²Π΅Π΄Π΅Π½ΠΈΠ΅ ΠΊΠΎΠΌΠΏΠΎΠ·ΠΈΡΠ°. ΠΠ°ΠΊ ΠΈ Π² ΡΠ»ΡΡΠ°Π΅ Ρ Π±ΡΡΠ΅ΡΠ±ΡΠΎΠ΄ΠΎΠΌ, Π²Ρ ΠΌΠΎΠΆΠ΅ΡΠ΅ ΡΠΊΠ»Π°Π΄ΡΠ²Π°ΡΡ ΡΠ»ΠΎΠΈ Π»ΡΠ±ΡΠΌ ΠΊΠΎΠ»ΠΈΡΠ΅ΡΡΠ²ΠΎΠΌ ΡΠΏΠΎΡΠΎΠ±ΠΎΠ². Π Π½Π΅Ρ Π½ΠΈΡΠ΅Π³ΠΎ, ΡΡΠΎ Π³ΠΎΠ²ΠΎΡΠΈΠ»ΠΎ Π±Ρ, ΡΡΠΎ Ρ Π»Π΅Π± Π΄ΠΎΠ»ΠΆΠ΅Π½ Π±ΡΡΡ ΡΠ½Π°ΡΡΠΆΠΈ!
Π‘ΠΈΠΌΠΌΠ΅ΡΡΠΈΡΠ½ΡΠΉ
ΠΠΏΡΠ΅Π΄Π΅Π»Π΅Π½ΠΈΠ΅: Π»Π°ΠΌΠΈΠ½Π°Ρ, ΡΠΈΠΌΠΌΠ΅ΡΡΠΈΡΠ½ΡΠΉ ΠΎΡΠ½ΠΎΡΠΈΡΠ΅Π»ΡΠ½ΠΎ ΡΠ²ΠΎΠ΅ΠΉ Π½Π΅ΠΉΡΡΠ°Π»ΡΠ½ΠΎΠΉ ΠΎΡΠΈ, ΠΈΠΌΠ΅ΡΡΠΈΠΉ Π·Π΅ΡΠΊΠ°Π»ΡΠ½ΠΎΠ΅ ΠΎΡΡΠ°ΠΆΠ΅Π½ΠΈΠ΅ Π²Π΅ΡΠ° ΠΈ ΠΎΡΠΈΠ΅Π½ΡΠ°ΡΠΈΠΈ Π²ΠΎΠ»ΠΎΠΊΠΎΠ½.
ΠΡΠ΅Π΄ΡΡΠ°Π²ΡΡΠ΅, ΡΡΠΎ Π²Ρ ΠΎΡΠ΅Π½Ρ ΠΎΡΠΎΠ±Π΅Π½Π½ΡΠΉ ΠΏΡΠΎΠΈΠ·Π²ΠΎΠ΄ΠΈΡΠ΅Π»Ρ Π±ΡΡΠ΅ΡΠ±ΡΠΎΠ΄ΠΎΠ² ΠΈ Π²ΡΠ΅Π³Π΄Π° ΠΊΠ»Π°Π΄Π΅ΡΠ΅ ΡΡΡ ΠΏΡΡΠΌΠΎ Π² ΡΠ΅ΡΠ΅Π΄ΠΈΠ½Ρ (Π½Π΅ΠΉΡΡΠ°Π»ΡΠ½Π°Ρ ΠΎΡΡ) Π²Π°ΡΠΈΡ
Π±ΡΡΠ΅ΡΠ±ΡΠΎΠ΄ΠΎΠ².ΠΡΡ
ΠΎΠ΄Ρ ΠΈΠ· ΡΡΡΠ°, Π²Ρ ΠΊΠ»Π°Π΄Π΅ΡΠ΅ ΠΎΠ΄ΠΈΠ½ ΠΈ ΡΠΎΡ ΠΆΠ΅ ΠΈΠ½Π³ΡΠ΅Π΄ΠΈΠ΅Π½Ρ Π½Π° ΠΊΠ°ΠΆΠ΄ΡΡ ΡΡΠΎΡΠΎΠ½Ρ, ΡΠΎΡ
ΡΠ°Π½ΡΡ ΡΠΈΠΌΠΌΠ΅ΡΡΠΈΡ ΠΎΡΠ½ΠΎΡΠΈΡΠ΅Π»ΡΠ½ΠΎ ΡΡΡΠ° — Ρ ΠΈΠΌΠ΅Ρ Π² Π²ΠΈΠ΄Ρ Β«Π½Π΅ΠΉΡΡΠ°Π»ΡΠ½ΡΡ ΠΎΡΡΒ». Π’Π°ΠΊ ΡΡΠΎ, Π΅ΡΠ»ΠΈ Π²Ρ Π² ΡΠ»Π΅Π΄ΡΡΡΠΈΠΉ ΡΠ°Π· Π΄ΠΎΠ±Π°Π²ΠΈΡΠ΅ ΠΏΠΎΠΌΠΈΠ΄ΠΎΡ Π² Π±ΡΡΠ΅ΡΠ±ΡΠΎΠ΄, ΠΏΠΎ ΠΎΠ±Π΅ ΡΡΠΎΡΠΎΠ½Ρ ΠΎΡ Β«ΡΠ»ΠΎΡΒ» ΡΡΡΠ° Π±ΡΠ΄Π΅Ρ Π°ΠΊΠΊΡΡΠ°ΡΠ½ΡΠΉ ΡΠ»ΠΎΠΉ ΠΏΠΎΠΌΠΈΠ΄ΠΎΡΠ°. ΠΠ°ΡΠ΅ΠΌ, Π²ΠΎΠ·ΠΌΠΎΠΆΠ½ΠΎ, Π½Π΅ΡΠΊΠΎΠ»ΡΠΊΠΎ ΡΠΎΠ»Π΅Π½ΠΈΠΉ — ΠΏΠΎΠ»ΠΎΡΠΊΠΈ Π°ΠΊΠΊΡΡΠ°ΡΠ½ΠΎ Π½Π°ΡΠ΅Π·Π°Π½Π½ΠΎΠ³ΠΎ ΠΌΠ°ΡΠΈΠ½Π°Π΄Π° ΠΏΠΎ ΠΎΠ±Π΅ ΡΡΠΎΡΠΎΠ½Ρ ΠΎΡ ΠΏΠΎΠΌΠΈΠ΄ΠΎΡΠ°, Π° Π·Π°ΡΠ΅ΠΌ ΡΠ°Π»Π°Ρ ΠΏΠΎ ΠΎΠ±Π΅ ΡΡΠΎΡΠΎΠ½Ρ ΠΎΡ ΠΌΠ°ΡΠΈΠ½Π°Π΄Π° — ΠΈ, Π½Π°ΠΊΠΎΠ½Π΅Ρ, Π΄Π²Π° Π»ΠΎΠΌΡΠΈΠΊΠ° Ρ
Π»Π΅Π±Π°, ΠΏΠΎΠΊΡΡΡΡΠ΅ ΡΠΏΡΠ΅Π΄ΠΎΠΌ — ΡΠ°ΠΊ ΡΡΠΎ ΡΠΏΡΠ΅Π΄ Π²ΡΡΡΠ΅ΡΠ°Π΅ΡΡΡ Ρ ΡΠ°Π»Π°ΡΠΎΠΌ.
ΠΡΠΎΡ ΡΡΠ½Π΄Π²ΠΈΡ Β«ΡΠΈΠΌΠΌΠ΅ΡΡΠΈΡΠ΅Π½Β» — ΠΊΠ°ΠΆΠ΄ΡΠΉ ΠΈΠ½Π³ΡΠ΅Π΄ΠΈΠ΅Π½Ρ ΡΠΈΠΌΠΌΠ΅ΡΡΠΈΡΠ΅Π½ ΡΡΡΡ ΠΏΠΎΡΠ΅ΡΠ΅Π΄ΠΈΠ½Π΅.Π‘Π²Π΅ΡΡ Ρ Ρ Π½Π°Ρ Π΅ΡΡΡ ΠΏΠΎΡΠ»Π΅Π΄ΠΎΠ²Π°ΡΠ΅Π»ΡΠ½ΠΎΡΡΡ ΡΠΊΠ»Π°Π΄ΠΊΠΈ, ΠΊΠΎΡΠΎΡΠ°Ρ Π²ΡΠ³Π»ΡΠ΄ΠΈΡ ΡΠ°ΠΊ:
- Π₯Π»Π΅Π± — Π²Π΅ΡΡ
- Π‘ΠΏΡΠ΅Π΄
- Π‘Π°Π»Π°Ρ
- Π Π°ΡΡΠΎΠ»
- ΠΠΎΠΌΠΈΠ΄ΠΎΡ
- Π‘ΡΡ — ΡΡΠΎ Π½Π΅ΠΉΡΡΠ°Π»ΡΠ½Π°Ρ ΠΎΡΡ!
- ΠΠΎΠΌΠΈΠ΄ΠΎΡ
- Π Π°ΡΡΠΎΠ»
- Π‘Π°Π»Π°Ρ
- ΠΠ°ΠΌΠ°Π·ΠΊΠ°
- Π₯Π»Π΅Π± — Π΄Π½ΠΎ
ΠΡΠΈΠ³ΠΎΡΠΎΠ²Π»Π΅Π½ΠΈΠ΅ ΡΡΠΎΠ³ΠΎ ΡΡΠ½Π΄Π²ΠΈΡΠ°, Π½Π°ΡΠ°Π² Ρ ΡΡΡΠ° ΠΈ ΠΏΡΡΠ°ΡΡΡ ΡΠ΄Π΅ΡΠΆΠ°ΡΡ Π²ΡΠ΅ Π²ΠΌΠ΅ΡΡΠ΅, Π±ΡΠ»ΠΎ Π±Ρ Π³ΡΡΠ·Π½ΡΠΌ ΠΏΡΠΎΡΠ΅ΡΡΠΎΠΌ. ΠΡ, ΠΊΠ°ΠΊ ΠΎΡΠ΅Π½Ρ ΠΏΡΠΈΠ²Π΅ΡΠ΅Π΄Π»ΠΈΠ²ΡΠΉ ΠΏΡΠΎΠΈΠ·Π²ΠΎΠ΄ΠΈΡΠ΅Π»Ρ Π±ΡΡΠ΅ΡΠ±ΡΠΎΠ΄ΠΎΠ², ΡΠΎΡΡΠ°Π²ΠΈΡΠ΅ ΡΡΠΎΡ ΡΠΏΠΈΡΠΎΠΊ ΠΈ Π½Π°ΡΠ½Π΅ΡΠ΅ Ρ ΡΠ°ΠΌΠΎΠ³ΠΎ Π½ΠΈΠ·Π° (Ρ Π»Π΅Π±) ΠΈ Π°ΠΊΠΊΡΡΠ°ΡΠ½ΠΎ Π΄ΠΎΠ±Π°Π²ΠΈΡΠ΅ ΠΊΠ°ΠΆΠ΄ΡΠΉ ΡΠ»ΠΎΠΉ.ΠΠΎΠ·ΠΌΠΎΠΆΠ½ΠΎ, Π²Ρ ΡΠΊΠ°ΠΆΠ΅ΡΠ΅ ΡΠΎΠ»ΡΠΈΠ½Ρ ΡΠΏΡΠ΅Π΄Π° (Π² Π³ΡΠ°ΠΌΠΌΠ°Ρ Π½Π° ΠΊΠ²Π°Π΄ΡΠ°ΡΠ½ΡΠΉ ΠΌΠ΅ΡΡ), Π° Π·Π°ΡΠ΅ΠΌ ΠΎΡΠΈΠ΅Π½ΡΠ°ΡΠΈΡ ΡΠΎΠ»Π΅Π½ΠΈΠΉ — Π½Ρ ΠΊΠΎΠ½Π΅ΡΠ½ΠΎ ΠΆΠ΅!
ΠΡΠ°ΠΊ, ΡΠ΅ΠΏΠ΅ΡΡ, ΠΊΠΎΠ³Π΄Π° ΠΌΡ ΠΎΡΠΊΡΡΡΡ Π΄Π»Ρ ΡΠΊΠ»Π°Π΄ΠΊΠΈ Π½Π°ΡΠΈΡ ΠΌΠ°ΡΠ΅ΡΠΈΠ°Π»ΠΎΠ² ΡΠΈΠΌΠΌΠ΅ΡΡΠΈΡΠ½ΠΎ ΠΎΡΠ½ΠΎΡΠΈΡΠ΅Π»ΡΠ½ΠΎ ΡΡΠ΅Π΄Π½Π΅ΠΉ Π½Π΅ΠΉΡΡΠ°Π»ΡΠ½ΠΎΠΉ ΠΎΡΠΈ, Ρ ΠΏΡΠ΅Π΄ΠΏΠΎΠ»Π°Π³Π°Ρ, ΡΡΠΎ ΡΡΠΎΡ ΡΠΈΠΏ ΡΡΠΎΠΏΠΊΠΈ ΡΠ°ΡΡΠΎ ΠΈΡΠΏΠΎΠ»ΡΠ·ΡΠ΅ΡΡΡ ΠΏΡΠΈ ΠΏΡΠΎΠ΅ΠΊΡΠΈΡΠΎΠ²Π°Π½ΠΈΠΈ ΠΊΠΎΠΌΠΏΠΎΠ·ΠΈΡΠ½ΡΡ Π»Π°ΠΌΠΈΠ½Π°ΡΠΎΠ². Π’Π°ΠΊΠΈΠ΅ Π»Π°ΠΌΠΈΠ½Π°ΡΡ Π½Π°Π·ΡΠ²Π°ΡΡ Β«ΡΠΈΠΌΠΌΠ΅ΡΡΠΈΡΠ½ΡΠΌΠΈΒ». ΠΠΎ ΠΌΠ΅ΡΠ΅ ΠΎΡΠ²Π΅ΡΠΆΠ΄Π΅Π½ΠΈΡ ΡΠΌΠΎΠ»Ρ ΡΠ°ΡΡΠΎ ΡΠΆΠΈΠΌΠ°ΡΡΡΡ ΠΈΠ»ΠΈ ΡΠ»Π΅Π³ΠΊΠ° ΠΌΠ΅Π½ΡΡΡ ΡΠΎΡΠΌΡ. ΠΠΎΠ»ΠΎΠΊΠ½Π° ΡΠ΄Π΅ΡΠΆΠΈΠ²Π°ΡΡ ΡΡΠΎ ΠΈΠ·ΠΌΠ΅Π½Π΅Π½ΠΈΠ΅ ΡΠΎΡΠΌΡ Π±ΠΎΠ»ΡΡΠ΅ Π² ΡΠΎΠΌ Π½Π°ΠΏΡΠ°Π²Π»Π΅Π½ΠΈΠΈ, Π² ΠΊΠΎΡΠΎΡΠΎΠΌ ΠΎΠ½ΠΈ Π½Π°ΠΏΡΠ°Π²Π»Π΅Π½Ρ, ΡΠ΅ΠΌ Π² Π΄ΡΡΠ³ΠΈΡ Π½Π°ΠΏΡΠ°Π²Π»Π΅Π½ΠΈΡΡ .ΠΠ°ΠΌΠΈΠ½Π°Ρ, ΡΠΎΡΡΠΎΡΡΠΈΠΉ Π²ΡΠ΅Π³ΠΎ ΠΈΠ· Π΄Π²ΡΡ ΡΠ»ΠΎΠ΅Π² ΠΎΠ΄Π½ΠΎΠ½Π°ΠΏΡΠ°Π²Π»Π΅Π½Π½ΠΎΠ³ΠΎ Π²ΠΎΠ»ΠΎΠΊΠ½Π°, ΡΠ°ΡΠΏΠΎΠ»ΠΎΠΆΠ΅Π½Π½ΠΎΠ³ΠΎ ΠΏΠΎΠ΄ ΡΠ³Π»ΠΎΠΌ 90 Π³ΡΠ°Π΄ΡΡΠΎΠ² Π΄ΡΡΠ³ ΠΊ Π΄ΡΡΠ³Ρ, ΠΎΡΠ΅Π½Ρ Π»Π΅Π³ΠΊΠΎ ΠΌΠΎΠΆΠ΅Ρ Π²ΡΠ³Π»ΡΠ΄Π΅ΡΡ ΠΊΠ°ΠΊ ΠΊΠ°ΡΡΠΎΡΠ΅Π»ΡΠ½ΡΠ΅ ΡΠΈΠΏΡΡ — ΠΎΠ½ ΠΎΠΏΡΠ΅Π΄Π΅Π»Π΅Π½Π½ΠΎ Π½Π΅ ΠΎΡΡΠ°Π½Π΅ΡΡΡ ΠΏΠ»ΠΎΡΠΊΠΈΠΌ!
ΠΠΎΡ Π²ΠΈΠ΄Π΅ΠΎ ΠΎ ΡΠΎΠΌ, ΡΡΠΎ ΠΏΡΠΎΠΈΡΡ ΠΎΠ΄ΠΈΡ, ΠΊΠΎΠ³Π΄Π° Π»Π°ΠΌΠΈΠ½Π°Ρ Π½Π΅ ΡΠΈΠΌΠΌΠ΅ΡΡΠΈΡΠ΅Π½:
Π‘Π±Π°Π»Π°Π½ΡΠΈΡΠΎΠ²Π°Π½Π½ΡΠΉ
ΠΠΏΡΠ΅Π΄Π΅Π»Π΅Π½ΠΈΠ΅: Π»Π°ΠΌΠΈΠ½Π°Ρ, Π² ΠΊΠΎΡΠΎΡΠΎΠΌ ΠΊΠ°ΠΆΠ΄ΠΎΠΌΡ ΡΠ»ΠΎΡ, ΠΎΡΠ»ΠΈΡΠ½ΠΎΠΌΡ ΠΎΡ 0 ΠΈΠ»ΠΈ 90, ΡΠΎΠΎΡΠ²Π΅ΡΡΡΠ²ΡΠ΅Ρ ΡΠ»ΠΎΠΉ ΡΠ°Π²Π½ΠΎΠ³ΠΎ Π²Π΅ΡΠ° Π² ΠΏΡΠΎΡΠΈΠ²ΠΎΠΏΠΎΠ»ΠΎΠΆΠ½ΠΎΠΉ (ΠΏΠΎΠ΄ ΡΠ³Π»ΠΎΠΌ 90 Π³ΡΠ°Π΄ΡΡΠΎΠ²) ΠΎΡΠΈΠ΅Π½ΡΠ°ΡΠΈΠΈ.
Π’Π΅ΠΏΠ΅ΡΡ, Π΅ΡΠ»ΠΈ Π±Ρ Π² Π΄ΠΎΠΏΠΎΠ»Π½Π΅Π½ΠΈΠ΅ ΠΊ Π±Π°Π»Π°Π½ΡΠΈΡΠΎΠ²ΠΊΠ΅ ΠΊΠ°ΠΆΠ΄ΡΠΉ ΡΠ»ΠΎΠΉ, Π½Π΅ ΡΠ°Π²Π½ΡΠΉ 0 ΠΈΠ»ΠΈ 90 Π³ΡΠ°Π΄ΡΡΠΎΠ², Π±ΡΠ» ΡΠΌΠ΅ΡΠ΅Π½ ΡΠ°Π²Π½ΡΠΌ ΡΠ»ΠΎΠ΅ΠΌ Π² Β«ΠΏΡΠΎΡΠΈΠ²ΠΎΠΏΠΎΠ»ΠΎΠΆΠ½ΠΎΠΌΒ» Π½Π°ΠΏΡΠ°Π²Π»Π΅Π½ΠΈΠΈ, Π»Π°ΠΌΠΈΠ½Π°Ρ Π±ΡΠ» Π±Ρ Β«ΡΠ±Π°Π»Π°Π½ΡΠΈΡΠΎΠ²Π°Π½Π½ΡΠΌΒ», Π° ΡΠ°ΠΊΠΆΠ΅ ΡΠΈΠΌΠΌΠ΅ΡΡΠΈΡΠ½ΡΠΌ.Π’Π°ΠΊΠΈΠΌ ΠΎΠ±ΡΠ°Π·ΠΎΠΌ, Π² ΡΠ±Π°Π»Π°Π½ΡΠΈΡΠΎΠ²Π°Π½Π½ΠΎΠΌ Π»Π°ΠΌΠΈΠ½Π°ΡΠ΅ Π²ΡΠ΅ ΡΠ»ΠΎΠΈ, ΠΎΡΠ»ΠΈΡΠ½ΡΠ΅ ΠΎΡ 0 ΠΈΠ»ΠΈ 90 Π³ΡΠ°Π΄ΡΡΠΎΠ², ΠΏΠΎΡΠ²Π»ΡΡΡΡΡ ΠΏΠΎΠΏΠ°ΡΠ½ΠΎ! ΠΠΎΡ Π»Π°ΠΌΠΈΠ½Π°Ρ, ΠΊΠΎΡΠΎΡΡΠΉ ΠΠ ΡΠ±Π°Π»Π°Π½ΡΠΈΡΠΎΠ²Π°Π½:
- 200 Π³ ΠΠ°ΡΠ±ΠΎΠ½, 0/90
- 300 Π³ ΠΠ°ΡΠ±ΠΎΠ½ ΠΠ΄Π½ΠΎΠ½Π°ΠΏΡΠ°Π²Π»Π΅Π½Π½ΡΠΉ ΠΏΡΠΈ +45 (ΡΡΠΎΠΌΡ ΡΠ»ΠΎΡ ΡΠΎΠΎΡΠ²Π΅ΡΡΡΠ²ΡΠ΅Ρ Π΄ΡΡΠ³ΠΎΠΉ ΡΠ°ΠΊΠΎΠΉ ΠΆΠ΅ ΡΠ»ΠΎΠΉ, Π° Π½Π΅ Β«ΠΏΡΠΎΡΠΈΠ²ΠΎΠΏΠΎΠ»ΠΎΠΆΠ½ΡΠΉΒ» ΠΈΠ»ΠΈ -45.)
- — Π½Π΅ΠΉΡΡΠ°Π»ΡΠ½Π°Ρ ΠΎΡΡ —
- 300 Π³ Π£Π³Π»Π΅ΡΠΎΠ΄ ΠΠ΄Π½ΠΎΠ½Π°ΠΏΡΠ°Π²Π»Π΅Π½Π½ΡΠΉ Π½Π° +45
- 200 Π³ ΠΠ°ΡΠ±ΠΎΠ½ΠΎΠ²ΡΠΉ ΡΠΊΠ°Π½ΡΠΉ Π½Π° 0/90
ΠΠΎΡ ΠΏΡΠΈΠΌΠ΅Ρ ΡΠ±Π°Π»Π°Π½ΡΠΈΡΠΎΠ²Π°Π½Π½ΠΎΠ³ΠΎ Π»Π°ΠΌΠΈΠ½Π°ΡΠ° — Ρ Π²Π΅ΡΠΎΠΌ ΡΠ»ΠΎΠ΅Π² ΠΈ ΠΎΡΠΈΠ΅Π½ΡΠ°ΡΠΈΠ΅ΠΉ Π²ΠΎΠ»ΠΎΠΊΠΎΠ½, Π½ΠΎ ΠΠ ΡΠΈΠΌΠΌΠ΅ΡΡΠΈΡΠ½ΡΠΌ:
- 200 Π³ Π£Π³Π»Π΅ΡΠΎΠ΄Π½ΡΠΉ ΡΠΊΠ°Π½ΡΠΉ Π½Π° 0/90
- 300 Π³ Π£Π³Π»Π΅ΡΠΎΠ΄ ΠΠ΄Π½ΠΎΠ½Π°ΠΏΡΠ°Π²Π»Π΅Π½Π½ΡΠΉ ΠΏΡΠΈ +45
- 300 Π³ Π£Π³Π»Π΅ΡΠΎΠ΄ ΠΠ΄Π½ΠΎΠ½Π°ΠΏΡΠ°Π²Π»Π΅Π½Π½ΡΠΉ ΠΏΡΠΈ -45
- — Π½Π΅ΠΉΡΡΠ°Π»ΡΠ½Π°Ρ ΠΎΡΡ —
- 300 Π³ Π£Π³Π»Π΅ΡΠΎΠ΄ ΠΠ΄Π½ΠΎΠ½Π°ΠΏΡΠ°Π²Π»Π΅Π½Π½ΡΠΉ ΠΏΡΠΈ +45
- 300 Π³ Π£Π³Π»Π΅ΡΠΎΠ΄ ΠΎΠ΄Π½ΠΎΠ½Π°ΠΏΡΠ°Π²Π»Π΅Π½Π½ΡΠΉ ΠΏΡΠΈ -45
- 200 Π³ Carbon Woven at 0/90
Π’Π΅ΠΏΠ΅ΡΡ, Π½Π΅ΠΌΠ½ΠΎΠ³ΠΎ ΠΈΠ·ΠΌΠ΅Π½ΠΈΠ² ΠΏΠΎΡΡΠ΄ΠΎΠΊ ΡΡΠ°Π±Π΅Π»ΠΈΡΠΎΠ²Π°Π½ΠΈΡ, ΠΌΠΎΠΆΠ½ΠΎ ΠΏΠΎΠ»ΡΡΠΈΡΡ ΠΎΠ±Π° Π²Π°ΡΠΈΠ°Π½ΡΠ°:
- 200 Π³ Π£Π³Π»Π΅ΡΠΎΠ΄Π½Π°Ρ ΡΠΊΠ°Π½Ρ Π½Π° 0/90
- 300 Π³ Π£Π³Π»Π΅ΡΠΎΠ΄ ΠΠ΄Π½ΠΎΠ½Π°ΠΏΡΠ°Π²Π»Π΅Π½Π½ΡΠΉ ΠΏΡΠΈ +45
- 300 Π³ Π£Π³Π»Π΅ΡΠΎΠ΄ ΠΠ΄Π½ΠΎΠ½Π°ΠΏΡΠ°Π²Π»Π΅Π½Π½ΡΠΉ ΠΏΡΠΈ -45
- — Π½Π΅ΠΉΡΡΠ°Π»ΡΠ½Π°Ρ ΠΎΡΡ —
- 300 Π³ ΠΠ°ΡΠ±ΠΎΠ½ ΠΠ΄Π½ΠΎΠ½Π°ΠΏΡΠ°Π²Π»Π΅Π½Π½ΡΠΉ ΠΏΡΠΈ -45 (ΠΏΡΠΎΡΡΠΎ ΠΏΠ΅ΡΠ΅Π²Π΅ΡΠ½ΡΠ» ΡΡΠΈ + ΠΈ — 45 ΡΠ»ΠΎΠ΅Π² ΡΡΠΎΠ±Ρ Π±ΡΡΡ ΡΠΈΠΌΠΌΠ΅ΡΡΠΈΡΠ½ΡΠΌ ΠΎΡΠ½ΠΎΡΠΈΡΠ΅Π»ΡΠ½ΠΎ Π½Π΅ΠΉΡΡΠ°Π»ΡΠ½ΠΎΠΉ ΠΎΡΠΈ)
- 300 Π³ Π£Π³Π»Π΅ΡΠΎΠ΄ ΠΠ΄Π½ΠΎΠ½Π°ΠΏΡΠ°Π²Π»Π΅Π½Π½ΡΠΉ ΠΏΡΠΈ +45
- 200 Π³ ΠΠ°ΡΠ±ΠΎΠ½ΠΎΠ²ΡΠΉ ΡΠΊΠ°Π½ΡΠΉ ΠΏΡΠΈ 0/90
ΠΠΎ ΠΎΠ½ Π½Π΅ ΠΊΠ²Π°Π·ΠΈΠΈΠ·ΠΎΡΡΠΎΠΏΠ½ΡΠΉ — ΠΈΠ»ΠΈ Π΄Π°ΠΆΠ΅ Π±Π»ΠΈΠ·ΠΊΠΎ! Π£ Π²Π°Ρ Π΅ΡΡΡ 600 Π³ Π²ΠΎΠ»ΠΎΠΊΠ½Π° Π² Π½Π°ΠΏΡΠ°Π²Π»Π΅Π½ΠΈΡΡ +/- 45 ΠΈ 200 Π³ Π² Π½Π°ΠΏΡΠ°Π²Π»Π΅Π½ΠΈΡΡ 0 ΠΈ 90.
ΠΠ΅ΡΠ±Π°Π»Π°Π½ΡΠΈΡΠΎΠ²Π°Π½Π½ΡΠ΅ Π»Π°ΠΌΠΈΠ½Π°ΡΡ (Π² ΠΎΡΠ½ΠΎΠ²Π½ΠΎΠΌ ΠΎΠ΄Π½ΠΎΡΠ»ΠΎΠΉΠ½ΡΠ΅ / Π±Π΅Π· ΡΠ΅ΡΠ΄ΡΠ΅Π²ΠΈΠ½Ρ) ΠΌΠΎΠ³ΡΡ Π²ΡΠ·ΡΠ²Π°ΡΡ ΠΊΠΎΡΠΎΠ±Π»Π΅Π½ΠΈΠ΅ ΠΈ ΡΠ΄Π²ΠΈΠ³ Π² Π»Π°ΠΌΠΈΠ½Π°ΡΠ΅. ΠΠ½ΠΎΠ³Π΄Π° ΡΡΠΎ Π½ΠΎΡΠΌΠ°Π»ΡΠ½ΠΎ, Π½ΠΎ Π² ΡΠ΅Π»ΠΎΠΌ ΡΡΠΎΠ³ΠΎ Π»ΡΡΡΠ΅ ΠΈΠ·Π±Π΅Π³Π°ΡΡ. Π ΡΠ»ΡΡΠ°Π΅ ΡΠΎΠΌΠ½Π΅Π½ΠΈΠΉ — ΡΠΏΡΠΎΡΠΈΡΠ΅ ΠΈΠ½ΠΆΠ΅Π½Π΅ΡΠ°!
Π‘Π±Π°Π»Π°Π½ΡΠΈΡΠΎΠ²Π°Π½Π½ΡΠΉ, ΡΠΈΠΌΠΌΠ΅ΡΡΠΈΡΠ½ΡΠΉ ΠΈ ΠΊΠ²Π°Π·ΠΈΠΈΠ·ΠΎΡΡΠΎΠΏΠ½ΡΠΉ!
ΠΠ΄Π΅Π°Π»ΡΠ½ΡΠΉ Π»Π°ΠΌΠΈΠ½Π°Ρ Π΄Π»Ρ ΠΊΠ²Π°Π·ΠΈΠΈΠ·ΠΎΡΡΠΎΠΏΠ½ΠΎΠΉ ΠΏΠ»Π°ΡΡΠΈΠ½Ρ ΡΠ°ΠΊΠΆΠ΅ Π΄ΠΎΠ»ΠΆΠ΅Π½ Π±ΡΡΡ ΡΠ±Π°Π»Π°Π½ΡΠΈΡΠΎΠ²Π°Π½Π½ΡΠΌ ΠΈ ΡΠΈΠΌΠΌΠ΅ΡΡΠΈΡΠ½ΡΠΌ.
ΠΠ½ΠΎΠ³Π΄Π° ΡΡΠΎ ΡΠ»ΠΎΠΆΠ½ΠΎ Π²ΡΠΏΠΎΠ»Π½ΠΈΡΡ, ΡΡΠΈΡΡΠ²Π°Ρ ΠΏΠΎΡΡΠ΅Π±Π½ΠΎΡΡΡ Π² Π³ΠΎΡΠΎΠ²ΠΎΠΉ ΡΠΎΠ»ΡΠΈΠ½Π΅, ΡΠΎΠ»ΡΠΈΠ½Π΅ ΡΠ»ΠΎΡ ΠΈ ΠΊΠΎΠ»ΠΈΡΠ΅ΡΡΠ²Π΅ ΡΠ»ΠΎΠ΅Π² Π² ΡΡΠΎΠΏΠΊΠ΅ QI (ΠΊΠ²Π°Π·ΠΈΠΈΠ·ΠΎ).ΠΠ°ΠΆΠ΄ΡΠΉ ΡΠ»ΠΎΠΉ Π²Π»ΠΈΡΠ΅Ρ Π½Π° ΡΠΎΠ»ΡΠΈΠ½Ρ, Π²Π΅Ρ Π²ΠΎΠ»ΠΎΠΊΠ½Π° ΠΈ ΠΎΡΠΈΠ΅Π½ΡΠ°ΡΠΈΡ Π²ΠΎΠ»ΠΎΠΊΠ½Π°. ΠΠ½ΠΎΠ³Π΄Π° ΡΡΠΎ Π½Π΅Π²ΠΎΠ·ΠΌΠΎΠΆΠ½ΠΎ ΡΠΎΠ³Π»Π°ΡΠΎΠ²Π°ΡΡ Π² ΠΏΠ°Π½Π΅Π»ΠΈ, ΠΎΡΠ²Π΅ΡΠ°ΡΡΠ΅ΠΉ Π²ΡΠ΅ΠΌ ΡΡΠ΅Π±ΠΎΠ²Π°Π½ΠΈΡΠΌ. Π§Π°ΡΡΠΎ ΠΌΠΎΠΆΠ΅Ρ ΠΈΡΠΏΠΎΠ»ΡΠ·ΠΎΠ²Π°ΡΡΡΡ ΠΌΠ°ΡΠ΅ΡΠΈΠ°Π» ΠΏΠΎΠ»ΠΎΡΠ½ΡΠ½ΠΎΠ³ΠΎ ΠΈΠ»ΠΈ ΡΠ°ΡΠΆΠ΅Π²ΠΎΠ³ΠΎ ΠΏΠ΅ΡΠ΅ΠΏΠ»Π΅ΡΠ΅Π½ΠΈΡ, ΠΏΠΎΡΠΎΠΌΡ ΡΡΠΎ ΠΎΠ½ ΡΠ°ΠΌ ΠΏΠΎ ΡΠ΅Π±Π΅ ΡΠ±Π°Π»Π°Π½ΡΠΈΡΠΎΠ²Π°Π½ ΠΈ ΡΠ°ΠΌΠΎΡΠΈΠΌΠΌΠ΅ΡΡΠΈΡΠ΅Π½, ΠΏΠΎΡΠΊΠΎΠ»ΡΠΊΡ Π²ΠΎΠ»ΠΎΠΊΠ½Π° ΠΎΡΠ½ΠΎΠ²Ρ ΠΈ ΡΡΠΊΠ° Π² ΡΡΠ΅Π΄Π½Π΅ΠΌ ΡΠ°ΡΠΏΠΎΠ»ΠΎΠΆΠ΅Π½Ρ Π²ΠΎΠΊΡΡΠ³ Π½Π΅ΠΉΡΡΠ°Π»ΡΠ½ΠΎΠΉ ΠΎΡΠΈ ΡΠΊΠ°Π½ΠΈ. Π‘ ΠΎΠ΄Π½ΠΎΠ½Π°ΠΏΡΠ°Π²Π»Π΅Π½Π½ΡΠΌ ΡΠ»ΠΎΠ΅ΠΌ ΡΠΏΡΠ°Π²ΠΈΡΡΡΡ ΠΌΠΎΠΆΠ΅Ρ Π±ΡΡΡ ΡΠ»ΠΎΠΆΠ½Π΅Π΅, ΠΏΠΎΡΠΎΠΌΡ ΡΡΠΎ ΠΊΠ°ΠΆΠ΄ΡΠΉ ΡΠ»ΠΎΠΉ ΡΠΊΠ°Π·ΡΠ²Π°Π΅Ρ ΡΠΎΠ»ΡΠΊΠΎ Π² ΠΎΠ΄Π½Ρ ΡΡΠΎΡΠΎΠ½Ρ. ΠΠ΅ΠΊΠΎΡΠΎΡΡΠ΅ ΠΌΠ°ΡΠ΅ΡΠΈΠ°Π»Ρ Π½Π΅ ΡΠ²Π»ΡΡΡΡΡ ΡΠ°ΠΌΠΎΡΠΈΠΌΠΌΠ΅ΡΡΠΈΡΠ½ΡΠΌΠΈ, Π½Π°ΠΏΡΠΈΠΌΠ΅Ρ Π°ΡΠ»Π°ΡΠ½ΡΠ΅ ΡΠΊΠ°Π½ΠΈ ΠΈΠ»ΠΈ ΡΡΠΈΡΡΠ΅ ΡΠΊΠ°Π½ΠΈ Π±Π΅Π· ΠΎΠ±ΠΆΠΈΠΌΠ°, ΠΏΠΎΡΡΠΎΠΌΡ, Π΅ΡΠ»ΠΈ Π²Ρ ΠΏΡΠΈΠ²Π΅ΡΠ΅Π΄Π»ΠΈΠ²Ρ, ΠΎΠ±ΡΠ°ΡΠΈΡΠ΅ Π²Π½ΠΈΠΌΠ°Π½ΠΈΠ΅ Π½Π°β¦
ΠΠΎΡ ΠΏΡΠΈΠΌΠ΅Ρ ΠΈΠ· ΠΎΠ±ΡΠ°Π·ΡΠ° Π»Π°ΠΌΠΈΠ½Π°ΡΠ° β4 ΡΠ±Π°Π»Π°Π½ΡΠΈΡΠΎΠ²Π°Π½Π½ΠΎΠ³ΠΎ, ΡΠΈΠΌΠΌΠ΅ΡΡΠΈΡΠ½ΠΎΠ³ΠΎ ΠΈ ΠΏΠΎΡΡΠΈ QI Π»Π°ΠΌΠΈΠ½Π°ΡΠ°.ΠΠ·-Π·Π° Π΄ΠΎΡΡΡΠΏΠ½ΠΎΠ³ΠΎ Π²Π΅ΡΠ° Π²ΠΎΠ»ΠΎΠΊΠ½Π° ΠΈ Π·Π°Π΄Π°Π½Π½ΠΎΠΉ ΡΠΎΠ»ΡΠΈΠ½Ρ ΡΡΠΎ Π½Π΅ ΡΠΎΠ²ΡΠ΅ΠΌ QI, Π½ΠΎ ΠΎΠ½ΠΎ ΡΠ±Π°Π»Π°Π½ΡΠΈΡΠΎΠ²Π°Π½ΠΎ! ΠΡΠ»ΠΈ Π±Ρ ΠΌΡ Ρ ΠΎΡΠ΅Π»ΠΈ 3,2-ΠΌΠΈΠ»Π»ΠΈΠΌΠ΅ΡΡΠΎΠ²ΡΡ ΠΏΠ°Π½Π΅Π»Ρ, ΡΠΎ Π±ΡΠ»ΠΎ Π±Ρ Π½ΠΎΡΠΌΠ°Π»ΡΠ½ΠΎ ΠΏΠΎΠΌΠ΅ΡΡΠΈΡΡ ΡΡΠ΄Π° Π΅ΡΠ΅ 200 Π³ ΡΠΊΠ°Π½ΠΈ ΠΏΠΎΡΠ΅ΡΠ΅Π΄ΠΈΠ½Π΅ ΠΈ ΠΏΠΎ 800 Π³ ΠΌΠ°ΡΠ΅ΡΠΈΠ°Π»Π° Π² ΠΊΠ°ΠΆΠ΄ΠΎΠΌ ΠΈΠ· ΡΠ΅ΡΡΡΠ΅Ρ Π½Π°ΠΏΡΠ°Π²Π»Π΅Π½ΠΈΠΉ.
Π Π²ΠΎΡ ΠΎΠ±ΡΠ°Π·Π΅Ρ Π»Π°ΠΌΠΈΠ½Π°ΡΠ° β19 — ΠΏΠΎΠ»Π½ΠΎΡΡΡΡ ΡΠ±Π°Π»Π°Π½ΡΠΈΡΠΎΠ²Π°Π½Π½ΡΠΉ Π»Π°ΠΌΠΈΠ½Π°Ρ QI Π² ΡΠ»Π΅ΠΊΡΡΠΎΠ½Π½ΠΎΠΌ ΡΡΠ΅ΠΊΠ»Π΅, ΠΊΠΎΡΠΎΡΡΠΉ ΠΎΡΠ»ΠΈΡΠ½ΠΎ ΡΠ°Π±ΠΎΡΠ°Π΅Ρ:
ΠΡ ΠΌΠΎΠΆΠ΅ΡΠ΅ Π²ΠΈΠ΄Π΅ΡΡ, ΡΡΠΎ Π»Π°ΠΌΠΈΠ½Π°Ρ ΡΠΈΠΌΠΌΠ΅ΡΡΠΈΡΠ΅Π½ ΠΎΡΠ½ΠΎΡΠΈΡΠ΅Π»ΡΠ½ΠΎ ΡΠ»ΠΎΡ 3. ΠΠ΅Ρ ΡΠ»ΠΎΠ΅Π² Β«0/90Β» (6 + 12 + 6 = 24) ΡΠ°Π²Π΅Π½ Π²Π΅ΡΡ ΡΠ»ΠΎΠ΅Π² Β«+/- 45Β» (12 + 12 = 24), ΠΏΠΎΡΡΠΎΠΌΡ Π»Π°ΠΌΠΈΠ½Π°Ρ ΠΎΠ΄Π½ΠΎΠ²ΡΠ΅ΠΌΠ΅Π½Π½ΠΎ ΡΠ±Π°Π»Π°Π½ΡΠΈΡΠΎΠ²Π°Π½ ΠΈ QI.ΠΡΠ»ΠΈ Π²Ρ Ρ ΠΎΡΠΈΡΠ΅ Π²ΠΎΡΡ ΠΈΡΠ°ΡΡΡΡ ΠΊΠ°ΠΆΠ΄ΠΎΠΉ ΠΌΠ°Π»Π΅Π½ΡΠΊΠΎΠΉ Π΄Π΅ΡΠ°Π»ΡΡ, Π²Ρ Π±ΡΠ΄Π΅ΡΠ΅ ΠΎΠ±Π΅ΡΠΏΠΎΠΊΠΎΠ΅Π½Ρ ΡΠ΅ΠΌ, ΡΡΠΎ ΡΡΠΈΡΠΎΠ΅ Π΄Π²ΠΎΠΉΠ½ΠΎΠ΅ ΡΠΌΠ΅ΡΠ΅Π½ΠΈΠ΅ / Π±ΠΈΠ°ΠΊΡΠΈΠ°Π»ΡΠ½ΠΎΠ΅ ΡΠ°ΠΌΠΎ ΠΏΠΎ ΡΠ΅Π±Π΅ Π½Π΅ ΡΠ²Π»ΡΠ΅ΡΡΡ ΡΠΈΠΌΠΌΠ΅ΡΡΠΈΡΠ½ΡΠΌ — ΡΠ°ΠΊ ΡΡΠΎ ΡΡΠΎ ΡΡΠ΅Π±ΡΠ΅Ρ Π»ΠΈΠ±ΠΎ ΠΏΡΠΈΡΡΠ°Π»ΡΠ½ΠΎΠ³ΠΎ Π²Π½ΠΈΠΌΠ°Π½ΠΈΡ ΠΊ ΠΏΠ΅ΡΠ΅Π²ΠΎΡΠ°ΡΠΈΠ²Π°Π½ΠΈΡ ΡΠ»ΠΎΠ΅Π², Π»ΠΈΠ±ΠΎ Π±ΠΎΠ»Π΅Π΅ Π½ΠΈΠ·ΠΊΠΈΡ ΡΡΠ°Π½Π΄Π°ΡΡΠΎΠ² ΡΡΠ΅ΡΠ»ΠΈΠ²ΠΎΡΡΠΈ! Π Π»ΡΠ±ΠΎΠΌ ΡΠ»ΡΡΠ°Π΅ ΡΡΠΎ Π½Π΅ ΡΠΎΠ²ΡΠ΅ΠΌ ΡΠΈΠΌΠΌΠ΅ΡΡΠΈΡΠ½ΠΎ, ΠΏΠΎΡΠΎΠΌΡ ΡΡΠΎ ΡΡΠ΅Π΄Π½ΠΈΠΉ Π΄Π²ΡΡ ΠΎΡΠ½ΡΠΉ ΡΠ»ΠΎΠΉ Π½Π΅ ΡΠΈΠΌΠΌΠ΅ΡΡΠΈΡΠ΅Π½. Π‘Π°ΠΌΠΎΡΠΈΠΌΠΌΠ΅ΡΡΠΈΡΠ½Ρ ΡΠΎΠ»ΡΠΊΠΎ ΠΏΠΎΠ»ΠΎΡΠ½ΡΠ½ΠΎΠ³ΠΎ ΠΈ ΡΠ°ΡΠΆΠ΅Π²ΠΎΠ³ΠΎ ΠΏΠ΅ΡΠ΅ΠΏΠ»Π΅ΡΠ΅Π½ΠΈΡ ΠΈ ΠΎΠ΄Π½ΠΎΠ½Π°ΠΏΡΠ°Π²Π»Π΅Π½Π½Π°Ρ Π°ΡΠΌΠ°ΡΡΡΠ°.
ΠΡΠΈΠΌΠ΅ΡΡ Π»Π°ΠΌΠΈΠ½Π°ΡΠ° QI ΠΈ ΡΠ±Π°Π»Π°Π½ΡΠΈΡΠΎΠ²Π°Π½Π½ΠΎΠ³ΠΎ Π»Π°ΠΌΠΈΠ½Π°ΡΠ° ΠΌΠΎΠΆΠ½ΠΎ Π½Π°ΠΉΡΠΈ Π² ΡΠ»Π΅Π΄ΡΡΡΠΈΡ Π²ΠΈΠ΄Π΅ΠΎ:
youtube.com/embed/eD_LfaTxXWU?feature=oembed» frameborder=»0″ allow=»accelerometer; autoplay; clipboard-write; encrypted-media; gyroscope; picture-in-picture» allowfullscreen=»»/>
ΠΡΠ΅ Π±ΠΎΠ»ΡΡΠ΅ Π²ΠΏΠ΅ΡΠ΅Π΄ΠΈ!
ΠΡΠ° ΡΡΠ°ΡΡΡ Π±ΡΠ΄Π΅Ρ Ρ ΡΠ°Π½ΠΈΠ»ΠΈΡΠ΅ΠΌ ΡΠ°ΡΡΠ΅ΡΠΎΠ² ΠΈ ΠΎΡΠ½ΠΎΠ²Π½ΡΡ Β«ΡΠΈΡΠ΅Π»Β», ΠΈΡΠΏΠΎΠ»ΡΠ·ΡΠ΅ΠΌΡΡ Π΄Π»Ρ ΠΎΠΏΠΈΡΠ°Π½ΠΈΡ ΠΊΠΎΠΌΠΏΠΎΠ·ΠΈΡΠΎΠ² ΠΈ Π»Π°ΠΌΠΈΠ½Π°ΡΠΎΠ² Ρ ΠΈΠ½ΠΆΠ΅Π½Π΅ΡΠ½ΠΎΠΉ ΡΠΎΡΠΊΠΈ Π·ΡΠ΅Π½ΠΈΡ.ΠΡΠΎ ΡΠΎΠ»ΡΠΊΠΎ Π½Π°ΡΠ°Π»ΠΎ! ΠΠΎΠΆΠ°Π»ΡΠΉΡΡΠ°, Π΄Π°ΠΉΡΠ΅ ΠΌΠ½Π΅ Π·Π½Π°ΡΡ, Π΅ΡΠ»ΠΈ ΡΡΠΎ-ΡΠΎ Π½Π΅ ΡΠ°ΠΊ ΠΈΠ»ΠΈ Π΅ΡΠ»ΠΈ Π²Ρ ΠΎΠ±Π½Π°ΡΡΠΆΠΈΡΠ΅ ΠΎΡΠΈΠ±ΠΊΠΈ. Π― ΠΠ ΠΈΠ½ΠΆΠ΅Π½Π΅Ρ ΠΏΠΎ ΠΊΠΎΠΌΠΏΠΎΠ·ΠΈΡΠ°ΠΌ!
ΠΠΎΠ³Π΄Π° Π²Ρ Π½Π°ΡΠ½Π΅ΡΠ΅ Π·Π°Π½ΠΈΠΌΠ°ΡΡΡΡ ΡΠ°Π·ΡΠ°Π±ΠΎΡΠΊΠΎΠΉ ΠΊΠΎΠΌΠΏΠΎΠ·ΠΈΡΠΎΠ², Π²Ρ Π±ΡΡΡΡΠΎ ΡΡΠΎΠ»ΠΊΠ½Π΅ΡΠ΅ΡΡ Ρ ΠΊΠ°ΠΊΠΎΠΉ-Π½ΠΈΠ±ΡΠ΄Ρ Π»ΠΈΠ½Π΅ΠΉΠ½ΠΎΠΉ Π°Π»Π³Π΅Π±ΡΠΎΠΉ. ΠΠ»Π°ΡΡΠΈΡΠ΅ΡΠΊΠ°Ρ ΡΠ΅ΠΎΡΠΈΡ Π»Π°ΠΌΠΈΠ½Π°ΡΠ° ΠΏΠ΅ΡΠ΅ΠΏΠΎΠ»Π½Π΅Π½Π° ΠΌΠ°ΡΡΠΈΡΠ°ΠΌΠΈ, ΠΈ Ρ Π½Π΅ ΡΠΎΡ ΠΏΠ°ΡΠ΅Π½Ρ (ΠΏΠΎΠΊΠ°!), Π§ΡΠΎΠ±Ρ ΠΏΠΎΠΉΡΠΈ ΡΡΠ΄Π° Ρ Π²Π°ΠΌΠΈ. Π ΡΡΠ°ΡΡΡΡ, Π΅ΡΡΡ ΠΌΠ½ΠΎΠ³ΠΎ ΠΊΠ½ΠΈΠ³, ΡΡΠ°ΡΠ΅ΠΉ ΠΈ ΠΈΠ½ΠΆΠ΅Π½Π΅ΡΠΎΠ², ΠΊΠΎΡΠΎΡΡΠ΅ ΠΌΠΎΠ³ΡΡ Π²Π°ΠΌ ΠΏΠΎΠΌΠΎΡΡ.
Π‘ΠΊΠΎΠ»ΡΠΊΠΎ ΠΌΠ½Π΅ Π½ΡΠΆΠ½ΠΎ?
ΠΠ½ΡΠΎΡΠΌΠ°ΡΠΈΡ ΠΎ ΡΠΎΠΌ, ΡΠΊΠΎΠ»ΡΠΊΠΎ Π½Π°ΠΏΠΎΠ»ΡΠ½ΠΎΠ³ΠΎ ΠΏΠΎΠΊΡΡΡΠΈΡ ΠΊΡΠΏΠΈΡΡ, Π·Π°Π²ΠΈΡΠΈΡ ΠΎΡ Π΅Π³ΠΎ ΡΠΈΠΏΠ°.
Π£ΡΡΠ°Π½ΠΎΠ²ΠΈΡΠ΅ ΠΊΠΎΠ»ΠΈΡΠ΅ΡΡΠ²ΠΎ ΠΊΠ²Π°Π΄ΡΠ°ΡΠ½ΡΡ ΠΌΠ΅ΡΡΠΎΠ²
Π§ΡΠΎΠ±Ρ ΡΠ°ΡΡΡΠΈΡΠ°ΡΡ ΠΏΠ»ΠΎΡΠ°Π΄Ρ ΠΊΠΎΠΌΠ½Π°ΡΡ Π² ΠΊΠ²Π°Π΄ΡΠ°ΡΠ½ΡΡ ΡΡΡΠ°Ρ , ΡΠΌΠ½ΠΎΠΆΡΡΠ΅ ΡΠΈΡΠΈΠ½Ρ ΠΊΠΎΠΌΠ½Π°ΡΡ Π½Π° Π΄Π»ΠΈΠ½Ρ. ΠΡ ΠΏΡΠ΅Π΄Π»Π°Π³Π°Π΅ΠΌ Π½Π°ΡΠΈΡΠΎΠ²Π°ΡΡ ΠΏΠ»Π°Π½ ΡΡΠ°ΠΆΠ° Π² ΠΌΠ°ΡΡΡΠ°Π±Π΅ ΠΈΠ»ΠΈ Ρ ΠΏΠΎΠΌΠΎΡΡΡ ΡΠ»Π΅ΠΊΡΡΠΎΠ½Π½ΠΎΠ³ΠΎ ΠΈΠ½ΡΡΡΡΠΌΠ΅Π½ΡΠ°, ΡΠ°ΠΊΠΎΠ³ΠΎ ΠΊΠ°ΠΊ ΠΏΡΠΈΠ»ΠΎΠΆΠ΅Π½ΠΈΠ΅ MagicPlan. ΠΡΠ»ΠΈ Π²Ρ ΠΏΡΠ΅Π΄ΠΏΠΎΡΠΈΡΠ°Π΅ΡΠ΅ ΡΠΈΡΠΎΠ²Π°ΡΡ ΠΈ ΠΈΠ·ΠΌΠ΅ΡΡΡΡ ΡΠ°ΠΌΠΎΡΡΠΎΡΡΠ΅Π»ΡΠ½ΠΎ, Π½Π°ΡΠΈ ΠΏΠ°ΡΡΠ½Π΅ΡΡ ΠΏΠΎ ΠΏΡΠΎΠ΅ΠΊΡΡ Π±ΡΠ΄ΡΡ ΡΠ°Π΄Ρ Π²ΡΠΏΠΎΠ»Π½ΠΈΡΡ ΡΠ°ΡΡΠ΅ΡΡ Π·Π° Π²Π°Ρ. ΠΠΎΠΌΠ½ΠΈΡΠ΅, ΡΡΠΎ Π²Π°Ρ ΠΏΡΠΎΠ΅ΠΊΡ: ΠΏΠ°ΡΡΠ½Π΅Ρ — ΡΡΠΎ Π²Π°Ρ Π»ΡΡΡΠΈΠΉ ΡΠ΅ΡΡΡΡ, ΠΊΠΎΡΠΎΡΡΠΉ ΠΌΠΎΠΆΠ΅Ρ ΠΏΠΎΠΌΠΎΡΡ Π²Π°ΠΌ ΡΠΎ Π²ΡΠ΅ΠΌΠΈ Π²ΠΈΠ΄Π°ΠΌΠΈ Π²ΠΎΠΏΡΠΎΡΠΎΠ².
ΠΠΎΠ²Π΅Ρ
ΠΠ°ΠΏΠ»Π°Π½ΠΈΡΡΠΉΡΠ΅ ΡΠ°ΡΠΏΠΎΠ»ΠΎΠΆΠ΅Π½ΠΈΠ΅ ΠΊΠΎΠ²ΡΠ° Π½Π° ΡΡ
Π΅ΠΌΠ΅ ΡΡΠ°ΠΆΠ°.ΠΡΠ»ΠΈ ΡΠΈΡΠΈΠ½Π° ΠΊΠΎΠΌΠ½Π°ΡΡ ΠΌΠ΅Π½ΡΡΠ΅, ΡΠ΅ΠΌ ΡΠΈΡΠΈΠ½Π° Π²ΡΠ±ΡΠ°Π½Π½ΠΎΠ³ΠΎ Π²Π°ΠΌΠΈ ΠΊΠΎΠ²ΡΠ°, ΡΠΌΠ½ΠΎΠΆΡΡΠ΅ ΡΠΈΡΠΈΠ½Ρ Π²ΡΠ±ΡΠ°Π½Π½ΠΎΠ³ΠΎ Π²Π°ΠΌΠΈ ΠΊΠΎΠ²ΡΠ° (Π²ΡΠ΅Π³Π΄Π° 12 ΡΡΡΠΎΠ² Π² The Floor Project) Π½Π° Π΄Π»ΠΈΠ½Ρ ΠΊΠΎΠΌΠ½Π°ΡΡ. ΠΠΎΠΏΡΡΡΠΈΠΌ, ΠΊΠΎΠΌΠ½Π°ΡΠ° ΠΈΠΌΠ΅Π΅Ρ ΡΠΈΡΠΈΠ½Ρ 10 ΡΡΡΠΎΠ² ΠΈ Π΄Π»ΠΈΠ½Ρ 18 ΡΡΡΠΎΠ². Π€Π°ΠΊΡΠΈΡΠ΅ΡΠΊΠ°Ρ ΠΏΠ»ΠΎΡΠ°Π΄Ρ Π² ΠΊΠ²Π°Π΄ΡΠ°ΡΠ½ΡΡ
ΡΡΡΠ°Ρ
ΡΠΎΡΡΠ°Π²Π»ΡΠ΅Ρ 180 ΠΊΠ²Π°Π΄ΡΠ°ΡΠ½ΡΡ
ΡΡΡΠΎΠ²; ΠΎΠ΄Π½Π°ΠΊΠΎ ΡΡΠΎ ΠΏΡΠΈΠ²Π΅Π΄Π΅Ρ ΠΊ ΠΎΠ±ΡΠ°Π·ΠΎΠ²Π°Π½ΠΈΡ ΡΠ²Π° Π² ΡΠ΅Π½ΡΡΠ΅ ΠΊΠΎΠΌΠ½Π°ΡΡ. ΠΠΎΡΡΠΎΠΌΡ ΠΌΡ ΠΈΠ·Π±Π΅Π³Π°Π΅ΠΌ ΡΠ²Π°, ΡΠΌΠ½ΠΎΠΆΠ°Ρ ΡΠΈΡΠΈΠ½Ρ ΠΊΠΎΠ²ΡΠ° Π½Π° Π΄Π»ΠΈΠ½Ρ ΠΊΠΎΠΌΠ½Π°ΡΡ: 12 ΡΡΡΠΎΠ² x 18 ΡΡΡΠΎΠ² = 216 ΠΊΠ²Π°Π΄ΡΠ°ΡΠ½ΡΡ
ΡΡΡΠΎΠ². ΠΠΎΠΌΠ½ΠΈΡΠ΅ ΠΎ ΡΠ°ΠΊΠΈΡ
ΠΌΠ΅ΡΡΠ°Ρ
, ΠΊΠ°ΠΊ ΡΡΠ°Π»Π΅ΡΡ. Π Π΄Π°Π½Π½ΠΎΠΌ ΠΏΡΠΈΠΌΠ΅ΡΠ΅ ΡΡΠΎ 3 ΡΡΡΠ°, ΡΠΎ Π΅ΡΡΡ 12 ΡΡΡΠΎΠ² x 3 ΡΡΡΠ° = Π΄ΠΎΠΏΠΎΠ»Π½ΠΈΡΠ΅Π»ΡΠ½ΡΠ΅ 36 ΠΊΠ²Π°Π΄ΡΠ°ΡΠ½ΡΡ
ΡΡΡΠΎΠ² ΠΊΠΎΠ²ΡΠ°.
ΠΠ°ΡΠ° ΠΎΠ±ΡΠ°Ρ Π½Π΅ΠΎΠ±Ρ
ΠΎΠ΄ΠΈΠΌΠ°Ρ ΠΏΠ»ΠΎΡΠ°Π΄Ρ ΡΠΎΡΡΠ°Π²Π»ΡΠ΅Ρ 252 ΠΊΠ²Π°Π΄ΡΠ°ΡΠ½ΡΡ
ΡΡΡΠ°.
ΠΡΠ΅Π³Π΄Π° Π΄ΠΎΠ±Π°Π²Π»ΡΠΉΡΠ΅ ΠΎΠΊΠΎΠ»ΠΎ 2 Π΄ΡΠΉΠΌΠΎΠ² Π΄Π»Ρ Π΄Π²Π΅ΡΠ½ΡΡ ΠΏΡΠΎΠ΅ΠΌΠΎΠ², ΡΡΠΎΠ±Ρ ΠΊΠΎΠ²Π΅Ρ ΡΠΎΠ²ΠΏΠ°Π΄Π°Π» Ρ Π½Π°ΠΏΠΎΠ»ΡΠ½ΡΠΌ ΠΏΠΎΠΊΡΡΡΠΈΠ΅ΠΌ Π² ΡΠΎΡΠ΅Π΄Π½Π΅ΠΉ ΠΊΠΎΠΌΠ½Π°ΡΠ΅. ΠΠΎΠ±Π°Π²ΡΡΠ΅ 10% ΠΊ ΠΎΠ±ΡΠ΅ΠΉ ΠΏΠ»ΠΎΡΠ°Π΄ΠΈ Π² ΠΊΠ²Π°Π΄ΡΠ°ΡΠ½ΡΡ ΡΡΡΠ°Ρ , Π½Π΅ΠΎΠ±Ρ ΠΎΠ΄ΠΈΠΌΠΎΠΉ ΠΏΡΠΈ ΡΡΡΠ°Π½ΠΎΠ²ΠΊΠ΅ Π±Π΅ΡΠ±Π΅ΡΡΠΊΠΈΡ ΠΊΠΎΠ²ΡΠΎΠ² ΠΈΠ»ΠΈ ΠΊΠΎΠ²ΡΠΎΠ² Ρ ΡΠΈΡΡΠ½ΠΊΠΎΠΌ, ΡΡΠΎΠ±Ρ ΠΎΠ±Π΅ΡΠΏΠ΅ΡΠΈΡΡ ΡΠΎΠΎΡΠ²Π΅ΡΡΡΠ²ΠΈΠ΅ ΡΠΈΡΡΠ½ΠΊΠ° ΡΠ°ΠΌ, Π³Π΄Π΅ ΠΏΠΎΡΡΠ΅Π±ΡΠ΅ΡΡΡ ΡΠΎΠ². ΠΠ°Ρ ΠΏΡΠΎΠ΅ΠΊΡ: ΠΏΠ°ΡΡΠ½Π΅Ρ ΠΌΠΎΠΆΠ΅Ρ ΠΏΠΎΠΌΠΎΡΡ Π²Π°ΠΌ ΠΏΠΎΠ΄ΡΡΠΈΡΠ°ΡΡ ΡΡΠΌΠΌΡ, ΠΏΠΎΠ΄Ρ ΠΎΠ΄ΡΡΡΡ Π΄Π»Ρ Π²Π°ΡΠ΅ΠΉ ΠΊΠΎΠΌΠ½Π°ΡΡ.
Π’Π²Π΅ΡΠ΄Π°Ρ Π΄ΡΠ΅Π²Π΅ΡΠΈΠ½Π°
ΠΠ°ΡΠΊΠ΅ΡΠ½ΡΠ΅ ΠΏΠΎΠ»Ρ ΠΏΡΠΎΠ΄Π°ΡΡΡΡ Π² ΠΊΠ°ΡΡΠΎΠ½Π½ΡΡ ΠΊΠΎΡΠΎΠ±ΠΊΠ°Ρ , ΠΎΠ±ΡΡΠ½ΠΎ 20 ΠΊΠ²Π°Π΄ΡΠ°ΡΠ½ΡΡ ΡΡΡΠΎΠ², Π½ΠΎ ΡΡΠΎΡΠ½ΡΠΉΡΠ΅ ΠΈΡ Ρ Project: Partner ΠΈΠ»ΠΈ ΠΎΡΡΠΊΠ°Π½ΠΈΡΡΠΉΡΠ΅ QR-ΠΊΠΎΠ΄ ΠΏΡΠΎΠ΄ΡΠΊΡΠ° Π² ΠΌΠ°Π³Π°Π·ΠΈΠ½Π΅, ΡΡΠΎΠ±Ρ ΠΏΡΠΎΠ²Π΅ΡΠΈΡΡ Π½ΠΎΠΌΠ΅Ρ Π²ΡΠ±ΡΠ°Π½Π½ΠΎΠΉ Π²Π°ΠΌΠΈ ΡΠ²Π΅ΡΠ΄ΠΎΠΉ Π΄ΡΠ΅Π²Π΅ΡΠΈΠ½Ρ.ΠΡΠ΅ ΠΏΠ°ΡΠΊΠ΅ΡΠ½ΡΠ΅ ΠΏΠΎΠ»Ρ ΡΡΠ΅Π±ΡΡΡ Π΄ΠΎΠ±Π°Π²Π»Π΅Π½ΠΈΡ ΠΎΠΏΡΠ΅Π΄Π΅Π»Π΅Π½Π½ΠΎΠ³ΠΎ ΠΏΡΠΎΡΠ΅Π½ΡΠ° ΠΎΡΡ ΠΎΠ΄ΠΎΠ² ΠΏΡΠΈ ΡΠΊΠ»Π°Π΄ΠΊΠ΅. ΠΡΠΎΡΠ΅Π½Ρ Π²Π°ΡΡΠΈΡΡΠ΅ΡΡΡ Π² Π·Π°Π²ΠΈΡΠΈΠΌΠΎΡΡΠΈ ΠΎΡ ΡΠΎΡΡΠ° ΡΠ²Π΅ΡΠ΄ΠΎΠΉ Π΄ΡΠ΅Π²Π΅ΡΠΈΠ½Ρ, ΡΠ°Π·Π»ΠΈΡΠΈΠΉ Π² ΡΠ²Π΅ΡΠ΅ ΠΈ ΡΠ΅ΠΊΡΡΡΡΠ΅, Π° ΡΠ°ΠΊΠΆΠ΅ ΠΎΡ ΠΊΠΎΠ»ΠΈΡΠ΅ΡΡΠ²Π° ΠΌΠ°ΡΠ΅ΡΠΈΠ°Π»Π°, ΠΊΠΎΡΠΎΡΡΠΉ Π²Ρ ΡΡΡΠ°Π½Π°Π²Π»ΠΈΠ²Π°Π΅ΡΠ΅. ΠΠ±ΡΠ΅Π΅ ΠΏΡΠ°Π²ΠΈΠ»ΠΎ — ΠΏΡΠΈΠ±Π°Π²Π»ΡΡΡ 10% Π΄Π»Ρ ΡΡΡΠ°Π½ΠΎΠ²ΠΎΠΊ Ρ ΠΏΠ»ΠΎΡΠ°Π΄ΡΡ ΠΌΠ°ΡΠ΅ΡΠΈΠ°Π»Π° ΠΌΠ΅Π½Π΅Π΅ 1000 ΠΊΠ²Π°Π΄ΡΠ°ΡΠ½ΡΡ ΡΡΡΠΎΠ² ΠΈ 7% Π΄Π»Ρ ΡΡΡΠ°Π½ΠΎΠ²ΠΎΠΊ, ΡΡΠ΅Π±ΡΡΡΠΈΡ Π±ΠΎΠ»Π΅Π΅ 1000 ΠΊΠ²Π°Π΄ΡΠ°ΡΠ½ΡΡ ΡΡΡΠΎΠ². Π Π΅ΠΊΠΎΠΌΠ΅Π½Π΄ΡΠ΅ΠΌΡΠΉ Π΄ΠΎΠΏΡΡΠΊ Π½Π° ΠΎΡΡ ΠΎΠ΄Ρ ΠΌΠΎΠΆΠ΅Ρ Π΄ΠΎΡΡΠΈΠ³Π°ΡΡ 15% Π΄Π»Ρ ΠΈΠ·Π΄Π΅Π»ΠΈΠΉ, ΡΡΡΠ°Π½Π°Π²Π»ΠΈΠ²Π°Π΅ΠΌΡΡ ΠΏΠΎ Π΄ΠΈΠ°Π³ΠΎΠ½Π°Π»ΠΈ, ΠΈΠ»ΠΈ ΠΈΠ·Π΄Π΅Π»ΠΈΠΉ ΠΈΠ· ΡΠ²Π΅ΡΠ΄ΠΎΠΉ Π΄ΡΠ΅Π²Π΅ΡΠΈΠ½Ρ Π±ΠΎΠ»Π΅Π΅ Π½ΠΈΠ·ΠΊΠΎΠ³ΠΎ ΡΠΎΡΡΠ°. ΠΡΠΏΠΎΠ»ΡΠ·ΡΡ ΠΏΡΠΈΠΌΠ΅Ρ 210 ΠΊΠ²Π°Π΄ΡΠ°ΡΠ½ΡΡ ΡΡΡΠΎΠ² Π² Π½Π°ΡΠ΅ΠΉ ΠΊΠΎΠΌΠ½Π°ΡΠ΅ ΠΈ ΡΡΠ°Π»Π΅ΡΠ΅, ΠΌΡ ΠΌΠΎΠΆΠ΅ΠΌ ΡΠ°ΡΡΡΠΈΡΠ°ΡΡ Π½Π°Ρ Π·Π°ΠΏΠ°Ρ Π½Π° 10% ΠΎΡΡ ΠΎΠ΄ΠΎΠ², ΡΠΌΠ½ΠΎΠΆΠΈΠ² 210 Π½Π° 10%, ΡΡΠΎΠ±Ρ ΠΏΠΎΠ»ΡΡΠΈΡΡ 21, ΠΏΠΎΡΡΠΎΠΌΡ Π½Π°ΠΌ Π½ΡΠΆΠ½ΠΎ Π±ΡΠ΄Π΅Ρ ΠΊΡΠΏΠΈΡΡ 231 ΠΊΠ²Π°Π΄ΡΠ°ΡΠ½ΡΠΉ ΡΡΡ Π΄ΡΠ΅Π²Π΅ΡΠΈΠ½Ρ ΡΠ²Π΅ΡΠ΄ΡΡ ΠΏΠΎΡΠΎΠ΄.ΠΡΠ»ΠΈ Ρ Π²ΡΠ±ΡΠ°Π½Π½ΠΎΠ³ΠΎ Π½Π°ΠΌΠΈ ΠΏΡΠΎΠ΄ΡΠΊΡΠ° 20 ΠΊΠ²Π°Π΄ΡΠ°ΡΠ½ΡΡ ΡΡΡΠΎΠ² Π² ΠΊΠΎΡΠΎΠ±ΠΊΠ΅, ΡΠ°Π·Π΄Π΅Π»ΠΈΡΠ΅ 231 Π½Π° 20. ΠΡ ΠΏΠΎΠ»ΡΡΠΈΠΌ 11,55, ΠΏΠΎΡΡΠΎΠΌΡ Π½Π°ΠΌ Π½ΡΠΆΠ½ΠΎ ΠΎΠΊΡΡΠ³Π»ΠΈΡΡ ΠΈ ΠΊΡΠΏΠΈΡΡ 12 ΠΊΠΎΡΠΎΠ±ΠΎΠΊ.
ΠΠ°ΠΌΠΈΠ½Π°Ρ
ΠΠ°ΠΌΠΈΠ½Π°Ρ ΠΏΡΠΎΠ΄Π°Π΅ΡΡΡ Π² ΠΊΠ°ΡΡΠΎΠ½Π½ΠΎΠΉ ΡΠΏΠ°ΠΊΠΎΠ²ΠΊΠ΅. ΠΠ°ΠΆΠ΄Π°Ρ ΠΊΠΎΡΠΎΠ±ΠΊΠ° ΠΎΠ±ΡΡΠ½ΠΎ ΡΠΎΠ΄Π΅ΡΠΆΠΈΡ 20 ΠΊΠ²Π°Π΄ΡΠ°ΡΠ½ΡΡ
ΡΡΡΠΎΠ², Π½ΠΎ ΡΡΠΎ ΠΌΠΎΠΆΠ΅Ρ Π²Π°ΡΡΠΈΡΠΎΠ²Π°ΡΡΡΡ Π² Π·Π°Π²ΠΈΡΠΈΠΌΠΎΡΡΠΈ ΠΎΡ ΡΡΠΈΠ»Ρ. Π£ΡΠΎΡΠ½ΡΠΉΡΠ΅ ΡΠΎΡΠ½ΠΎΠ΅ ΠΊΠΎΠ»ΠΈΡΠ΅ΡΡΠ²ΠΎ Ρ ΡΠ²ΠΎΠ΅Π³ΠΎ ΠΏΠ°ΡΡΠ½Π΅ΡΠ° ΠΏΠΎ ΠΏΡΠΎΠ΅ΠΊΡΡ. Π₯ΠΎΡΡ Ρ Π»Π°ΠΌΠΈΠ½Π°ΡΠ° ΠΎΠ±ΡΡΠ½ΠΎ Π½Π΅Ρ ΠΏΡΠΎΠ±Π»Π΅ΠΌ Ρ ΠΊΠΎΠ½ΡΠΈΡΡΠ΅Π½ΡΠΈΠ΅ΠΉ, Π²Ρ Π²ΡΠ΅ ΡΠ°Π²Π½ΠΎ Π΄ΠΎΠ»ΠΆΠ½Ρ ΡΡΠΈΡΡΠ²Π°ΡΡ ΠΎΡΡ
ΠΎΠ΄Ρ ΠΏΡΠΈ ΡΠ°ΡΡΠ΅ΡΠ΅ ΠΊΠΎΠ»ΠΈΡΠ΅ΡΡΠ²Π° ΠΏΡΠΎΠ΄ΡΠΊΡΠ° Π΄Π»Ρ ΠΏΠΎΠΊΡΠΏΠΊΠΈ.ΠΡΠΎΡ ΠΏΡΠΈΠΏΡΡΠΊ ΠΌΠΎΠΆΠ΅Ρ ΡΠΎΡΡΠ°Π²Π»ΡΡΡ ΠΎΡ 5 Π΄ΠΎ 15% Π² Π·Π°Π²ΠΈΡΠΈΠΌΠΎΡΡΠΈ ΠΎΡ ΡΠ°Π·ΠΌΠ΅ΡΠ° ΠΏΡΠΎΠ΅ΠΊΡΠ°, Π° ΡΠ°ΠΊΠΆΠ΅ Π»ΡΠ±ΡΡ
ΡΠ³Π»ΠΎΠ² ΠΈ ΡΠ³Π»ΠΎΠ², ΠΊΠΎΡΠΎΡΡΠ΅ ΠΏΠΎΡΡΠ΅Π±ΡΡΡ Π΄ΠΎΠΏΠΎΠ»Π½ΠΈΡΠ΅Π»ΡΠ½ΡΡ
ΡΠ°Π·ΡΠ΅Π·ΠΎΠ².
ΠΠ°Π²Π°ΠΉΡΠ΅ Π²ΠΎΠ·ΡΠΌΠ΅ΠΌ Π½Π°Ρ ΠΏΡΠΈΠΌΠ΅Ρ ΠΊΠΎΠΌΠ½Π°ΡΡ ΠΏΠ»ΠΎΡΠ°Π΄ΡΡ 210 ΠΊΠ²Π°Π΄ΡΠ°ΡΠ½ΡΡ
ΡΡΡΠΎΠ². ΠΡ ΠΌΠΎΠΆΠ΅ΠΌ ΡΠ°ΡΡΡΠΈΡΠ°ΡΡ Π½Π°Ρ Π·Π°ΠΏΠ°Ρ Π½Π° 5% ΠΎΡΡ
ΠΎΠ΄ΠΎΠ², ΡΠΌΠ½ΠΎΠΆΠΈΠ² 210 Π½Π° 5%, ΡΡΠΎΠ±Ρ ΠΏΠΎΠ»ΡΡΠΈΡΡ 10,5, ΠΏΠΎΡΡΠΎΠΌΡ Π½Π°ΠΌ Π½ΡΠΆΠ½ΠΎ Π±ΡΠ΄Π΅Ρ ΠΊΡΠΏΠΈΡΡ 220,5 ΠΊΠ²Π°Π΄ΡΠ°ΡΠ½ΡΡ
ΡΡΡΠΎΠ² Π»Π°ΠΌΠΈΠ½Π°ΡΠ°. ΠΡΠ»ΠΈ Ρ Π²ΡΠ±ΡΠ°Π½Π½ΠΎΠ³ΠΎ Π½Π°ΠΌΠΈ ΠΏΡΠΎΠ΄ΡΠΊΡΠ° 20 ΠΊΠ²Π°Π΄ΡΠ°ΡΠ½ΡΡ
ΡΡΡΠΎΠ² Π² ΠΊΠΎΡΠΎΠ±ΠΊΠ΅, ΡΠ°Π·Π΄Π΅Π»ΠΈΡΠ΅ 220,5 Π½Π° 20. ΠΡ ΠΏΠΎΠ»ΡΡΠΈΠΌ 11,025. ΠΠ°ΠΌ Π½ΡΠΆΠ½ΠΎ Π±ΡΠ΄Π΅Ρ ΠΏΡΠΈΠΎΠ±ΡΠ΅ΡΡΠΈ 11 ΠΈΠ»ΠΈ 12 ΠΊΠΎΡΠΎΠ±ΠΎΠΊ Π² Π·Π°Π²ΠΈΡΠΈΠΌΠΎΡΡΠΈ ΠΎΡ ΡΠ»ΠΎΠΆΠ½ΠΎΡΡΠΈ ΠΏΠΎΠΌΠ΅ΡΠ΅Π½ΠΈΡ ΠΈ ΠΎΠΏΡΡΠ° Π²Π°ΡΠ΅Π³ΠΎ ΡΡΡΠ°Π½ΠΎΠ²ΡΠΈΠΊΠ°.
ΠΠΈΠ½ΠΈΠ»
ΠΠΈΠ½ΠΈΠ» ΡΠΎ ΡΡΠ΅ΠΊΠ»ΡΠ½Π½ΠΎΠΉ Π·Π°Π΄Π½Π΅ΠΉ ΡΡΠ΅Π½ΠΊΠΎΠΉ ΠΏΡΠΎΠ΄Π°Π΅ΡΡΡ Π² ΡΡΠ»ΠΎΠ½Π΅, Π° ΡΠΈΡΠΈΠ½Π° ΡΡΠ»ΠΎΠ½Π° ΠΌΠΎΠΆΠ΅Ρ Π²Π°ΡΡΠΈΡΠΎΠ²Π°ΡΡΡΡ ΠΎΡ 6, 12 ΠΈ 13 ΡΡΡΠΎΠ² 2 Π΄ΡΠΉΠΌΠ° Π² Π·Π°Π²ΠΈΡΠΈΠΌΠΎΡΡΠΈ ΠΎΡ ΡΡΠΈΠ»Ρ, ΠΏΠΎΡΡΠΎΠΌΡ ΠΏΡΠΎΠΊΠΎΠ½ΡΡΠ»ΡΡΠΈΡΡΠΉΡΠ΅ΡΡ Ρ ΠΏΠ°ΡΡΠ½Π΅ΡΠΎΠΌ ΠΏΠΎ ΠΏΡΠΎΠ΅ΠΊΡΡ, ΡΡΠΎΠ±Ρ ΠΎΠΏΡΠ΅Π΄Π΅Π»ΠΈΡΡ ΡΠΈΡΠΈΠ½Ρ ΡΡΠ»ΠΎΠ½Π° Π²ΠΈΠ½ΠΈΠ»ΠΎΠ²ΠΎΠ³ΠΎ ΠΏΡΠΎΠ΄ΡΠΊΡΠ°, ΠΊΠΎΡΠΎΡΡΠΉ Π²Ρ ΡΠ°ΡΡΠΌΠ°ΡΡΠΈΠ²Π°Π΅ΡΠ΅. Π Π°ΡΠΏΠ»Π°Π½ΠΈΡΡΠΉΡΠ΅ Π²ΠΈΠ½ΠΈΠ»ΠΎΠ²ΡΡ ΡΠ°ΡΠΊΠ»Π°Π΄ΠΊΡ Π½Π° ΡΡ Π΅ΠΌΠ΅ ΠΏΠ»Π°Π½Π° ΡΡΠ°ΠΆΠ°. ΠΡΠ»ΠΈ ΡΠΈΡΠΈΠ½Π° ΠΊΠΎΠΌΠ½Π°ΡΡ ΠΌΠ΅Π½ΡΡΠ΅, ΡΠ΅ΠΌ ΡΠΈΡΠΈΠ½Π° Π²ΡΠ±ΡΠ°Π½Π½ΠΎΠ³ΠΎ Π²Π°ΠΌΠΈ Π²ΠΈΠ½ΠΈΠ»Π°, ΠΊΠΎΡΠΎΡΡΠΉ Π² Π½Π°ΡΠ΅ΠΌ ΠΏΡΠΈΠΌΠ΅ΡΠ΅ Π±ΡΠ΄Π΅Ρ 12 ΡΡΡΠΎΠ², ΡΠΌΠ½ΠΎΠΆΡΡΠ΅ ΡΠΈΡΠΈΠ½Ρ Π²Π°ΡΠ΅Π³ΠΎ Π²ΠΈΠ½ΠΈΠ»Π° Π½Π° Π΄Π»ΠΈΠ½Ρ ΠΊΠΎΠΌΠ½Π°ΡΡ. Π Π½Π°ΡΠ΅ΠΌ ΠΏΡΠΈΠΌΠ΅ΡΠ΅ ΠΊΠΎΠΌΠ½Π°ΡΠ° ΠΈΠΌΠ΅Π΅Ρ ΡΠΈΡΠΈΠ½Ρ 10 ΡΡΡΠΎΠ² ΠΈ Π΄Π»ΠΈΠ½Ρ 18 ΡΡΡΠΎΠ².Π€Π°ΠΊΡΠΈΡΠ΅ΡΠΊΠ°Ρ ΠΏΠ»ΠΎΡΠ°Π΄Ρ Π² ΠΊΠ²Π°Π΄ΡΠ°ΡΠ½ΡΡ ΡΡΡΠ°Ρ ΡΠΎΡΡΠ°Π²Π»ΡΠ΅Ρ 180 ΠΊΠ²Π°Π΄ΡΠ°ΡΠ½ΡΡ ΡΡΡΠΎΠ²; ΠΎΠ΄Π½Π°ΠΊΠΎ ΡΡΠΎ ΠΏΡΠΈΠ²Π΅Π΄Π΅Ρ ΠΊ ΠΎΠ±ΡΠ°Π·ΠΎΠ²Π°Π½ΠΈΡ ΡΠ²Π° Π² ΡΠ΅Π½ΡΡΠ΅ Π²Π°ΡΠ΅ΠΉ ΠΊΠΎΠΌΠ½Π°ΡΡ. Π§ΡΠΎΠ±Ρ ΠΈΠ·Π±Π΅ΠΆΠ°ΡΡ ΡΠ²Π°, ΡΠΌΠ½ΠΎΠΆΡΡΠ΅ ΡΠΈΡΠΈΠ½Ρ Π²ΠΈΠ½ΠΈΠ»Π°, 12 ΡΡΡΠΎΠ², Π½Π° Π΄Π»ΠΈΠ½Ρ ΠΊΠΎΠΌΠ½Π°ΡΡ, 18 ΡΡΡΠΎΠ². ΠΠ±ΡΠ°Ρ ΠΏΠ»ΠΎΡΠ°Π΄Ρ ΡΠΎΡΡΠ°Π²Π»ΡΠ΅Ρ 216 ΠΊΠ²Π°Π΄ΡΠ°ΡΠ½ΡΡ ΡΡΡΠΎΠ². ΠΠ°ΠΌ ΡΠ°ΠΊΠΆΠ΅ Π½ΡΠΆΠ½ΠΎ Π±ΡΠ΄Π΅Ρ ΠΏΠΎΠΌΠ½ΠΈΡΡ ΠΎ Π½Π°ΡΠ΅ΠΌ ΡΡΠ°Π»Π΅ΡΠ΅, Π² ΠΊΠΎΡΠΎΡΠΎΠΌ Π±ΡΠ΄Π΅Ρ 12 ΡΡΡΠΎΠ² (ΡΠΈΡΠΈΠ½Π° ΡΡΠ»ΠΎΠ½Π°) ΡΠΌΠ½ΠΎΠΆΠΈΡΡ Π½Π° 3 ΡΡΡΠ° Π΄Π»Ρ Π΄ΠΎΠΏΠΎΠ»Π½ΠΈΡΠ΅Π»ΡΠ½ΡΡ 36 ΠΊΠ²Π°Π΄ΡΠ°ΡΠ½ΡΡ ΡΡΡΠΎΠ² Π²ΠΈΠ½ΠΈΠ»Π°, Π² ΡΠ΅Π·ΡΠ»ΡΡΠ°ΡΠ΅ ΡΠ΅Π³ΠΎ Π½Π°ΡΠ° ΠΎΠ±ΡΠ°Ρ ΡΡΠΌΠΌΠ° ΡΠΎΡΡΠ°Π²ΠΈΡ 252 ΠΊΠ²Π°Π΄ΡΠ°ΡΠ½ΡΡ ΡΡΡΠ°. ΠΡΠ΅Π³Π΄Π° Π΄ΠΎΠ±Π°Π²Π»ΡΠΉΡΠ΅ ΠΎΠΊΠΎΠ»ΠΎ 2 Π΄ΡΠΉΠΌΠΎΠ² Π΄Π»Ρ Π΄Π²Π΅ΡΠ½ΡΡ ΠΏΡΠΎΠ΅ΠΌΠΎΠ², ΡΡΠΎΠ±Ρ Π²ΠΈΠ½ΠΈΠ» ΡΠΎΠΎΡΠ²Π΅ΡΡΡΠ²ΠΎΠ²Π°Π» Π½Π°ΠΏΠΎΠ»ΡΠ½ΠΎΠΌΡ ΠΏΠΎΠΊΡΡΡΠΈΡ Π² ΡΠΎΡΠ΅Π΄Π½Π΅ΠΉ ΠΊΠΎΠΌΠ½Π°ΡΠ΅.ΠΠΎΠ±Π°Π²ΡΡΠ΅ 10% ΠΊ ΠΎΠ±ΡΠ΅ΠΉ ΠΏΠ»ΠΎΡΠ°Π΄ΠΈ ΠΊΠ²Π°Π΄ΡΠ°ΡΠ½ΡΡ ΡΡΡΠΎΠ², Π½Π΅ΠΎΠ±Ρ ΠΎΠ΄ΠΈΠΌΡΡ ΠΏΡΠΈ ΡΡΡΠ°Π½ΠΎΠ²ΠΊΠ΅ Π²ΠΈΠ½ΠΈΠ»Π° Ρ ΡΠΈΡΡΠ½ΠΊΠΎΠΌ, ΡΡΠΎΠ±Ρ ΠΎΠ±Π΅ΡΠΏΠ΅ΡΠΈΡΡ ΡΠΎΠΎΡΠ²Π΅ΡΡΡΠ²ΠΈΠ΅ ΡΠΈΡΡΠ½ΠΊΠ° Π²ΠΎ Π²ΡΠ΅ΠΌΡ ΡΡΡΠ°Π½ΠΎΠ²ΠΊΠΈ. ΠΠ»Ρ ΠΏΠΎΠ»ΡΡΠ΅Π½ΠΈΡ Π±ΠΎΠ»Π΅Π΅ ΠΏΠΎΠ΄ΡΠΎΠ±Π½ΠΎΠΉ ΠΈΠ½ΡΠΎΡΠΌΠ°ΡΠΈΠΈ ΠΎΠ±ΡΠ°ΡΠΈΡΠ΅ΡΡ ΠΊ ΠΏΡΠΎΠ΅ΠΊΡΡ: ΠΏΠ°ΡΡΠ½Π΅Ρ.
Π ΠΎΡΠΊΠΎΡΠ½Π°Ρ Π²ΠΈΠ½ΠΈΠ»ΠΎΠ²Π°Ρ ΠΏΠ»ΠΈΡΠΊΠ° (LVT)
ΠΠ°ΠΏΠΎΠ»ΡΠ½ΠΎΠ΅ ΠΏΠΎΠΊΡΡΡΠΈΠ΅ VT ΠΏΡΠΎΠ΄Π°Π΅ΡΡΡ Π² ΠΊΠ°ΡΡΠΎΠ½Π½ΠΎΠΉ ΡΠΏΠ°ΠΊΠΎΠ²ΠΊΠ΅. ΠΠ°ΠΆΠ΄Π°Ρ ΠΊΠΎΡΠΎΠ±ΠΊΠ° ΠΎΠ±ΡΡΠ½ΠΎ ΡΠΎΠ΄Π΅ΡΠΆΠΈΡ 20 ΠΊΠ²Π°Π΄ΡΠ°ΡΠ½ΡΡ
ΡΡΡΠΎΠ², Π½ΠΎ ΡΡΠΎ ΠΌΠΎΠΆΠ΅Ρ Π²Π°ΡΡΠΈΡΠΎΠ²Π°ΡΡΡΡ Π² Π·Π°Π²ΠΈΡΠΈΠΌΠΎΡΡΠΈ ΠΎΡ ΡΡΠΈΠ»Ρ.
Π₯ΠΎΡΡ Ρ ΠΏΡΠΎΠ΄ΡΠΊΡΠΎΠ² LVT ΠΎΠ±ΡΡΠ½ΠΎ Π½Π΅Ρ ΠΏΡΠΎΠ±Π»Π΅ΠΌ Ρ ΠΊΠΎΠ½ΡΠΈΡΡΠ΅Π½ΡΠΈΠ΅ΠΉ, Π²Π°ΠΌ Π²ΡΠ΅ ΡΠ°Π²Π½ΠΎ ΠΏΡΠΈΠ΄Π΅ΡΡΡ ΡΡΠΈΡΡΠ²Π°ΡΡ ΠΏΠΎΡΠ΅ΡΠΈ ΠΏΡΠΈ ΡΠ°ΡΡΠ΅ΡΠ΅ ΠΊΠΎΠ»ΠΈΡΠ΅ΡΡΠ²Π° ΠΏΡΠΎΠ΄ΡΠΊΡΠ° Π΄Π»Ρ ΠΏΠΎΠΊΡΠΏΠΊΠΈ. ΠΡΠΎΡ ΠΏΡΠΈΠΏΡΡΠΊ ΠΌΠΎΠΆΠ΅Ρ ΡΠΎΡΡΠ°Π²Π»ΡΡΡ ΠΎΡ 5 Π΄ΠΎ 10% Π² Π·Π°Π²ΠΈΡΠΈΠΌΠΎΡΡΠΈ ΠΎΡ ΡΠ°Π·ΠΌΠ΅ΡΠ° ΠΏΡΠΎΠ΅ΠΊΡΠ°, Π° ΡΠ°ΠΊΠΆΠ΅ Π»ΡΠ±ΡΡ
ΡΠ³Π»ΠΎΠ² ΠΈ ΡΠ³Π»ΠΎΠ², ΠΊΠΎΡΠΎΡΡΠ΅ ΠΏΠΎΡΡΠ΅Π±ΡΡΡ Π΄ΠΎΠΏΠΎΠ»Π½ΠΈΡΠ΅Π»ΡΠ½ΡΡ
ΡΠ°Π·ΡΠ΅Π·ΠΎΠ².ΠΠΎΠΏΡΡΡΠΈΠΌ, Π½Π°ΡΠ° ΠΊΠΎΠΌΠ½Π°ΡΠ° ΠΈΠΌΠ΅Π΅Ρ ΠΎΠ±ΡΡΡ ΠΏΠ»ΠΎΡΠ°Π΄Ρ 210 ΠΊΠ²Π°Π΄ΡΠ°ΡΠ½ΡΡ
ΡΡΡΠΎΠ² ΠΌΠ΅ΠΆΠ΄Ρ Π½Π΅ΠΉ ΠΈ ΡΡΠ°Π»Π΅ΡΠΎΠΌ. ΠΡ ΠΌΠΎΠΆΠ΅ΠΌ ΡΠ°ΡΡΡΠΈΡΠ°ΡΡ Π½Π°Ρ Π·Π°ΠΏΠ°Ρ Π½Π° 5% ΠΎΡΡ
ΠΎΠ΄ΠΎΠ², ΡΠΌΠ½ΠΎΠΆΠΈΠ² 210 Π½Π° 5%, ΡΡΠΎΠ±Ρ ΠΏΠΎΠ»ΡΡΠΈΡΡ 10,5, ΠΏΠΎΡΡΠΎΠΌΡ Π½Π°ΠΌ Π½ΡΠΆΠ½ΠΎ Π±ΡΠ΄Π΅Ρ ΠΊΡΠΏΠΈΡΡ 220,5 ΠΊΠ²Π°Π΄ΡΠ°ΡΠ½ΡΡ
ΡΡΡΠΎΠ² LVT. ΠΡΠ»ΠΈ Ρ Π²ΡΠ±ΡΠ°Π½Π½ΠΎΠ³ΠΎ Π½Π°ΠΌΠΈ ΠΏΡΠΎΠ΄ΡΠΊΡΠ° 20 ΠΊΠ²Π°Π΄ΡΠ°ΡΠ½ΡΡ
ΡΡΡΠΎΠ² Π² ΠΊΠΎΡΠΎΠ±ΠΊΠ΅, ΡΠ°Π·Π΄Π΅Π»ΠΈΡΠ΅ 220,5 Π½Π° 20, ΡΡΠΎΠ±Ρ ΠΏΠΎΠ»ΡΡΠΈΡΡ 11,025. ΠΠ°ΠΌ Π½ΡΠΆΠ½ΠΎ Π±ΡΠ΄Π΅Ρ ΠΏΡΠΈΠΎΠ±ΡΠ΅ΡΡΠΈ 11 ΠΈΠ»ΠΈ 12 ΠΊΠΎΡΠΎΠ±ΠΎΠΊ Π² Π·Π°Π²ΠΈΡΠΈΠΌΠΎΡΡΠΈ ΠΎΡ ΡΠ»ΠΎΠΆΠ½ΠΎΡΡΠΈ ΠΏΠΎΠΌΠ΅ΡΠ΅Π½ΠΈΡ ΠΈ ΠΎΠΏΡΡΠ° Π²Π°ΡΠ΅Π³ΠΎ ΡΡΡΠ°Π½ΠΎΠ²ΡΠΈΠΊΠ°.
ΠΠ°Π»ΡΠΊΡΠ»ΡΡΠΎΡ ΡΠ΅ΠΎΡΠΈΠΈ Π»Π°ΠΌΠΈΠ½Π°ΡΠ° — ΠΠ°Π»ΡΠΊΡΠ»ΡΡΠΎΡ ΡΠ΅ΠΎΡΠΈΠΈ ΠΊΠ»Π°ΡΡΠΈΡΠ΅ΡΠΊΠΎΠ³ΠΎ Π»Π°ΠΌΠΈΠ½Π°ΡΠ° 0.0.9 Π΄ΠΎΠΊΡΠΌΠ΅Π½ΡΠ°ΡΠΈΡ
ΠΠ²Π΅Π΄Π΅Π½ΠΈΠ΅
ΠΡΠΎΡ Π½Π°Π±ΠΎΡ ΡΠΊΡΠΈΠΏΡΠΎΠ² ΡΠΎΠ΄Π΅ΡΠΆΠΈΡ ΡΡΠ½ΠΊΡΠΈΠΈ, ΠΊΠΎΡΠΎΡΡΠ΅ ΠΌΠΎΠΆΠ½ΠΎ ΠΈΡΠΏΠΎΠ»ΡΠ·ΠΎΠ²Π°ΡΡ Π΄Π»Ρ ΡΠ°Π·ΡΠ°Π±ΠΎΡΠΊΠΈ ΠΏΡΠΎΡΡΡΡ Π²ΠΎΠ»ΠΎΠΊΠ½ΠΈΡΡΡΠ΅ ΠΊΠΎΠΌΠΏΠΎΠ·ΠΈΡΠ½ΡΠ΅ Π»Π°ΠΌΠΈΠ½Π°ΡΡ. Π¦Π΅Π»Ρ ΡΡΠΎΠ³ΠΎ ΠΏΡΠΎΠ΅ΠΊΡΠ° — ΡΠΎΠ·Π΄Π°Π½ΠΈΠ΅ open-source ΠΠ°Π»ΡΠΊΡΠ»ΡΡΠΎΡ ΡΠ΅ΠΎΡΠΈΠΈ Π»Π°ΠΌΠΈΠ½Π°ΡΠ° ΠΌΠΎΠΆΠ΅Ρ ΡΠΎΡΡΠ°Π²ΠΈΡΡ ΠΊΠΎΠ½ΠΊΡΡΠ΅Π½ΡΠΈΡ Β«ΠΠ°ΠΌΠΈΠ½Π°ΡΠΎΡΡΒ». Π£ ΠΏΡΠΎΠ΅ΠΊΡΠ° Π½Π° python Π΅ΡΡΡ Π΄Π²Π° ΠΏΡΠ΅ΠΈΠΌΡΡΠ΅ΡΡΠ²Π°: Π΅Π³ΠΎ ΠΌΠΎΠΆΠ½ΠΎ Π»Π΅Π³ΠΊΠΎ ΠΈΠ½ΡΠ΅Π³ΡΠΈΡΠΎΠ²Π°Π½, Π½Π°ΠΏΡΠΈΠΌΠ΅Ρ, Π² ΠΊΠ°Π»ΡΠΊΡΠ»ΡΡΠΎΡ ΠΏΡΠΎΠ΄ΠΎΠ»ΡΠ½ΠΎΠ³ΠΎ ΠΈΠ·Π³ΠΈΠ±Π° / Π΄Π΅ΡΠΎΡΠΌΠ°ΡΠΈΠΈ ΡΠΏΡΡΠ³ΠΎΠΉ ΠΏΠ»Π°ΡΡΠΈΠ½Ρ. ΠΠ»ΠΈ ΡΡΠΎ Π΅Π³ΠΎ ΠΌΠΎΠΆΠ½ΠΎ ΠΈΡΠΏΠΎΠ»ΡΠ·ΠΎΠ²Π°ΡΡ Π΄Π»Ρ ΠΏΠΎΠΈΡΠΊΠ° ΠΎΠΏΡΠΈΠΌΠ°Π»ΡΠ½ΠΎΠ³ΠΎ ΠΌΠ°ΠΊΠ΅ΡΠ° ΠΏΡΡΠ΅ΠΌ ΠΏΠ΅ΡΠ΅Π±ΠΎΡΠ° ΡΠ°Π·Π»ΠΈΡΠ½ΡΡ ΠΊΠΎΠ½ΡΡΡΡΠΊΡΠΈΠΈ.
ΠΠ΅ΡΠ΅Π΄ ΠΈΡΠΏΠΎΠ»ΡΠ·ΠΎΠ²Π°Π½ΠΈΠ΅ΠΌ ΠΊΠΎΠ΄Π° Ρ ΡΠ΅ΠΊΠΎΠΌΠ΅Π½Π΄ΡΡ ΠΏΡΠΎΡΠΈΡΠ°ΡΡ Π»ΠΈΡΠ΅ΡΠ°ΡΡΡΡ, Π·Π½Π°ΠΊΠΎΠΌΡΡΡΡ Ρ ΠΠ»Π°ΡΡΠΈΡΠ΅ΡΠΊΠ°Ρ ΡΠ΅ΠΎΡΠΈΡ Π»Π°ΠΌΠΈΠ½Π°ΡΠ°. Π‘ΡΡΠ΅ΡΡΠ²ΡΠ΅Ρ ΠΌΠ½ΠΎΠ³ΠΎ ΡΠ°ΠΊΠΈΡ ΠΊΠ½ΠΈΠ³, ΠΏΠΎ ΠΌΠΎΠ΅ΠΌΡ ΠΎΠΏΡΡΡ ΡΠ»Π΅Π΄ΡΡΡΠΈΠ΅, Π³Π΄Π΅ ΡΠ΅ΠΊΠΎΠΌΠ΅Π½Π΄ΠΎΠ²Π°Π½ΠΎ:
- ΠΡΠΎΠ΅ΠΊΡΠΈΡΠΎΠ²Π°Π½ΠΈΠ΅ ΠΈ Π°Π½Π°Π»ΠΈΠ· ΠΊΠΎΠΌΠΏΠΎΠ·ΠΈΡΠ½ΡΡ ΠΊΠΎΠ½ΡΡΡΡΠΊΡΠΈΠΉ: Ρ ΠΏΡΠΈΠΌΠ΅Π½Π΅Π½ΠΈΠ΅ΠΌ ΠΊ Π°ΡΡΠΎΠΊΠΎΡΠΌΠΈΡΠ΅ΡΠΊΠΈΠΌ ΠΊΠΎΠ½ΡΡΡΡΠΊΡΠΈΡΠΌ Π₯ΡΠΈΡΡΠΎΡΠ° ΠΠ°ΡΡΠ°ΠΏΠΎΠ³Π»Ρ (ISBN: 9781118536933, DOI: 10.1002 / 9781118536933)
- ΠΠΎΠΌΠΏΠΎΠ·ΠΈΡΠ½ΡΠ΅ ΠΌΠ°ΡΠ΅ΡΠΈΠ°Π»Ρ: Π΄ΠΈΠ·Π°ΠΉΠ½ ΠΈ ΠΏΡΠΈΠΌΠ΅Π½Π΅Π½ΠΈΠ΅ ΠΡΠ½ΠΈΠ΅Π»Π° ΠΠ΅ΠΉ (ISBN: 9780429101038 DOI: 10.1201 / b17106)
Todo
- ΠΠΎΠ±Π°Π²Π»Π΅Π½ΠΈΠ΅ ΡΡΠ½ΠΊΡΠΈΠΉ Π² ΠΌΠΎΠ΄ΡΠ»Ρ ΠΎΠΌΠΎΠ½ΠΈΠ³Π°ΡΠΈΠΈ.
- ΠΠΎΠ±Π°Π²Π»Π΅Π½ΠΈΠ΅ ΠΊΠ°Π»ΡΠΊΡΠ»ΡΡΠΎΡΠ° ΡΠ°Π·ΡΡΡΠ΅Π½ΠΈΡ ΠΎΠ±ΡΠ°ΡΠ½ΠΎΠ³ΠΎ ΡΠ»ΠΎΡ Π΄Π»Ρ Tsai-Hill.
- ΠΠΎΠ±Π°Π²Π»Π΅Π½ΠΈΠ΅ ΠΊΠ°Π»ΡΠΊΡΠ»ΡΡΠΎΡΠΎΠ² ΠΏΡΠΎΠ΄ΠΎΠ»ΡΠ½ΠΎΠ³ΠΎ ΠΈΠ·Π³ΠΈΠ±Π° / Π΄Π΅ΡΠΎΡΠΌΠ°ΡΠΈΠΈ.

ΠΡΠΈΠΌΠ΅Ρ
ΠΡΠΈΠΌΠ΅Ρ, ΠΎΠ±ΡΡΠΆΠ΄Π°Π΅ΠΌΡΠΉ Π½ΠΈΠΆΠ΅, ΡΠΎΡΡΠΎΠΈΡ ΠΈΠ· ΡΡΠ°Π³ΠΌΠ΅Π½ΡΠΎΠ² example.py.
Π Π½Π°ΡΠ°Π»Π΅ ΡΠ°ΠΉΠ»Π° ΡΡΠ΅Π±ΡΡΡΡΡ Π½Π΅ΠΎΠ±Ρ ΠΎΠ΄ΠΈΠΌΡΠ΅ ΠΏΠ°ΠΊΠ΅ΡΡ. ΠΠΈΠ½ΠΈΠΌΠ°Π»ΡΠ½ΠΎΠ΅ ΡΡΠ΅Π±ΠΎΠ²Π°Π½ΠΈΠ΅ ΡΡΠΎ numpy ΠΈ ΡΠ°Π·Π»ΠΈΡΠ½ΡΠ΅ ΡΡΠ΅Π½Π°ΡΠΈΠΈ, ΡΠ²ΡΠ·Π°Π½Π½ΡΠ΅ Ρ ΡΡΠΈΠΌ ΠΏΡΠΎΠ΅ΠΊΡΠΎΠΌ
# ΠΠΌΠΏΠΎΡΡΠΈΡΠΎΠ²Π°ΡΡ Π²Π½Π΅ΡΠ½ΠΈΠ΅ ΠΏΠ°ΠΊΠ΅ΡΡ. ΠΈΠΌΠΏΠΎΡΡΠΈΡΠΎΠ²Π°ΡΡ numpy ΠΊΠ°ΠΊ np # ΠΠΌΠΏΠΎΡΡΠΈΡΠΎΠ²Π°ΡΡ Π»ΠΎΠΊΠ°Π»ΡΠ½ΡΠ΅ ΠΏΠ°ΠΊΠ΅ΡΡ.Π³ΠΎΠΌΠΎΠ³Π΅Π½ΠΈΠ·Π°ΡΠΈΡ ΠΈΠΌΠΏΠΎΡΡΠ° ΠΈΠΌΠΏΠΎΡΡ abdcal ΠΈΠΌΠΏΠΎΡΡΠ½Π°Ρ Π΄Π΅ΡΠΎΡΠΌΠ°ΡΠΈΡ |
Π Π½Π°ΡΡΠΎΡΡΠ΅Π΅ Π²ΡΠ΅ΠΌΡ ΡΡΠ΅Π±ΡΠ΅ΡΡΡ ΠΎΠΏΡΠ΅Π΄Π΅Π»ΠΈΡΡ ΠΏΠ°ΡΠ°ΠΌΠ΅ΡΡΡ ΡΠ»ΠΎΡ Π² ΡΠΈΡΡΠ΅ΠΌΠ΅ ΠΎΡΠ΅ΠΉ ΡΠ»ΠΎΡ. Π Π±ΡΠ΄ΡΡΠ΅ΠΌ ΠΎΠ½ Π±ΡΠ΄Π΅Ρ Π·Π°ΠΌΠ΅Π½Π΅Π½ ΡΡΠ΅Π½Π°ΡΠΈΠ΅ΠΌ, Π² ΠΊΠΎΡΠΎΡΠΎΠΌ Π²ΡΠΏΠΎΠ»Π½ΡΠ΅ΡΡΡ Π±Π°Π·ΠΎΠ²ΠΎΠ΅ ΠΎΠΌΠΎΠ½ΠΈΠ³ΠΈΡΠΎΠ²Π°Π½ΠΈΠ΅. Π²ΡΠΏΠΎΠ»Π½ΡΠ΅ΡΡΡ Π½Π° ΡΠΎΡΡΠ°Π²Π»ΡΡΡΠΈΡ ΠΊΠ°ΠΆΠ΄ΠΎΠ³ΠΎ ΡΠ»ΠΎΡ.
26 27 28 Π³ΠΎΠ΄ 29 30 31 Π³ΠΎΠ΄ 32 33 34 35 Π³ΠΎΠ΄ 36 37 38 39 40 41 Π³ΠΎΠ΄ 42 43 | # ΠΠ΅ΡΠ΅ΡΠΈΡΠ»ΠΈΡΠ΅ ΡΠ»Π°ΡΡΠΈΡΠ½ΡΠ΅ ΡΠ²ΠΎΠΉΡΡΠ²Π° ΡΠ»ΠΎΡ. El = 142 * 1e3 # ΠΠΠ° Et = 13 * 1e3 # ΠΠΠ° G = 5 * 1e3 # ΠΠΠ° Π½ΡΠ»Ρ = 0.3 # - # ΠΠ΅ΡΠ΅ΡΠΈΡΠ»ΠΈΡΡ ΡΠ²ΠΎΠΉΡΡΠ²Π° ΡΠ°Π·ΡΡΡΠ΅Π½ΠΈΡ ΡΠ»ΠΎΡ. Xt = 2200 # ΠΠΠ° Xc = 1850 # ΠΠΠ° Yt = 55 # ΠΠΠ° Yc = 200 # ΠΠΠ° Smax = 120 # ΠΠΠ° # ΠΠ΅ΡΠ΅ΡΠΈΡΠ»ΠΈΡΠ΅ Π΄ΡΡΠ³ΠΈΠ΅ ΡΠ²ΠΎΠΉΡΡΠ²Π° ΡΠ»ΠΎΡ. t = 0,16 # ΠΌΠΌ # Π Π°ΡΡΡΠΈΡΠ°ΡΡ ΠΌΠ°ΡΡΠΈΡΡ ΠΌΠ°ΡΡΠΈΡΡ ΠΆΠ΅ΡΡΠΊΠΎΡΡΠΈ ΡΠ»ΠΎΡ. Q = abdcal.QPlaneStress (El, Et, nult, G) |
ΠΠ°ΡΠ΅ΠΌ ΡΠ»Π΅Π΄ΡΠ΅Ρ ΠΎΠΏΡΠ΅Π΄Π΅Π»ΠΈΡΡ ΡΠ²ΠΎΠΉΡΡΠ²Π° Π»Π°ΠΌΠΈΠ½Π°ΡΠ°. ΠΠ°ΡΠΈΠ½Π°Ρ Ρ ΡΠΊΠ»Π°Π΄ΠΊΠΈ ΠΏΠΎΡΠ»Π΅Π΄ΠΎΠ²Π°ΡΠ΅Π»ΡΠ½ΠΎΡΡΡ, ΠΊΠΎΡΠΎΡΠ°Ρ ΡΠΎΡΡΠΎΠΈΡ ΠΈΠ· ΡΠΏΠΈΡΠΊΠ° ΡΠ³Π»ΠΎΠ² ΠΏΠΎΠ²ΠΎΡΠΎΡΠ° ΠΊΠ°ΠΆΠ΄ΠΎΠ³ΠΎ ΡΠ»ΠΎΡ (ΠΎΡ Π³Π»ΠΎΠ±Π°Π»ΡΠ½ΠΎΠ³ΠΎ Π΄ΠΎ ΡΠΈΡΡΠ΅ΠΌΠ° ΠΎΡΠ΅ΠΉ ΡΠ»ΠΎΡ) ΠΈ ΡΠΏΠΈΡΠΎΠΊ Ρ ΡΠΎΠ»ΡΠΈΠ½ΠΎΠΉ ΠΊΠ°ΠΆΠ΄ΠΎΠ³ΠΎ ΡΠ»ΠΎΡ ΠΈ ΠΆΠ΅ΡΡΠΊΠΎΡΡΡΡ ΡΠ»ΠΎΡ ΠΌΠ°ΡΡΠΈΡΠ° \ (Q \).ΠΠ΅ΡΡ ΡΠΏΠΈΡΠΎΠΊ Π΄ΠΎΠ»ΠΆΠ΅Π½ Π±ΡΡΡ ΡΠΏΠΎΡΡΠ΄ΠΎΡΠ΅Π½ ΡΠ²Π΅ΡΡ Ρ Π²Π½ΠΈΠ·. Π»Π°ΠΌΠΈΠ½Π°Ρ. ΠΠ±ΡΠ°ΡΠΈΡΠ΅ Π²Π½ΠΈΠΌΠ°Π½ΠΈΠ΅, ΡΡΠΎ ΠΏΠΎΠ»ΠΎΠΆΠΈΡΠ΅Π»ΡΠ½ΠΎΠ΅ Π½Π°ΠΏΡΠ°Π²Π»Π΅Π½ΠΈΠ΅ \ (z \) ΠΏΠΎ ΡΠΎΠ³Π»Π°ΡΠ΅Π½ΠΈΡ Π½Π°ΠΏΡΠ°Π²Π»Π΅Π½ΠΎ Π²Π½ΠΈΠ·.
ΠΠΎΡΠ»Π΅ ΡΡΠΎΠ³ΠΎ ΡΠ²ΠΎΠΉΡΡΠ²Π° ΡΠ»ΠΎΡ ΠΌΠΎΠΆΠ½ΠΎ ΠΈΡΠΏΠΎΠ»ΡΠ·ΠΎΠ²Π°ΡΡ Π΄Π»Ρ ΡΠ°ΡΡΠ΅ΡΠ° ΠΌΠ°ΡΡΠΈΡΡ ABD ΠΈ Π΅Π΅ ΠΎΠ±ΡΠ°ΡΠ½ΡΠΉ.
# ΠΠΏΡΠ΅Π΄Π΅Π»ΠΈΡΠ΅ ΠΏΠΎΡΠ»Π΅Π΄ΠΎΠ²Π°ΡΠ΅Π»ΡΠ½ΠΎΡΡΡ Π½Π°Π»ΠΎΠΆΠ΅Π½ΠΈΡ. angles_deg = [0, 0, 45, 90, -45, -45, 90, 45, 0, 0] ΡΠΎΠ»ΡΠΈΠ½Π° = [t] * len (angles_deg) Q = [Q] * len (angles_deg) # ΠΡΡΠΈΡΠ»ΠΈΡΡ ΠΌΠ°ΡΡΠΈΡΡ ABD ΠΈ ΠΎΠ±ΡΠ°ΡΠ½ΡΡ Π΅ΠΉ. abd = abdcal.abd (Q, angles_deg, ΡΠΎΠ»ΡΠΈΠ½Π°) abd_inv = abdcal.Π’ \). ΠΠ°ΡΠ΅ΠΌ ΡΠ΅Π·ΡΠ»ΡΡΠΈΡΡΡΡΠΈΠ΅ Π½Π°ΠΏΡΡΠΆΠ΅Π½ΠΈΡ ΠΈ Π½Π°Π³ΡΡΠ·ΠΊΠΈ Π² ΡΠ»ΠΎΡΡ (Π² ΠΈΡ Π»ΠΎΠΊΠ°Π»ΡΠ½ΠΎΠΉ ΡΠΈΡΡΠ΅ΠΌΠ΅ ΠΎΡΠ΅ΠΉ) ΠΌΠΎΠΆΠ½ΠΎ ΡΠ°ΡΡΡΠΈΡΠ°ΡΡ.
ΠΠ°ΠΊΠΎΠ½Π΅Ρ, Π½Π°ΠΏΡΡΠΆΠ΅Π½ΠΈΡ ΠΈΡΠΏΠΎΠ»ΡΠ·ΡΡΡΡΡ Π΄Π»Ρ ΡΠ°ΡΡΠ΅ΡΠ° ΠΊΡΠΈΡΠ΅ΡΠΈΠ΅Π² ΡΠ°Π·ΡΡΡΠ΅Π½ΠΈΡ. Π½Π°ΡΡΡΠ΅Π½ΠΎ. ΠΠ΄Π΅ΡΡ ΠΈΡΠΏΠΎΠ»ΡΠ·ΡΡΡΡΡ ΠΌΠ°ΠΊΡΠΈΠΌΠ°Π»ΡΠ½ΠΎΠ΅ Π½Π°ΠΏΡΡΠΆΠ΅Π½ΠΈΠ΅, ΠΊΡΠΈΡΠ΅ΡΠΈΠΈ Π¦Π°ΠΉ-ΠΡ ΠΈ Π¦Π°ΠΉ-Π₯ΠΈΠ»Π». Π Π΅ΠΊΠΎΠΌΠ΅Π½Π΄ΡΠ΅ΡΡΡ, ΡΡΠΎΠ±Ρ ΠΏΠΎΠ»ΡΠ·ΠΎΠ²Π°ΡΠ΅Π»Ρ ΠΎΠ·Π½Π°ΠΊΠΎΠΌΠΈΠ»ΡΡ Ρ ΡΠ°Π·Π»ΠΈΡΠΈΡΠΌΠΈ ΠΌΠ΅ΠΆΠ΄Ρ Π²ΠΎΠ·ΠΌΠΎΠΆΠ½ΡΠΌΠΈ ΠΊΡΠΈΡΠ΅ΡΠΈΠΈ, Π²ΡΠ΅ ΠΎΠ½ΠΈ ΠΈΠΌΠ΅ΡΡ ΡΠ²ΠΎΠΈ ΡΠΈΠ»ΡΠ½ΡΠ΅ ΠΈ ΡΠ»Π°Π±ΡΠ΅ ΡΡΠΎΡΠΎΠ½Ρ ΠΈ ΠΏΡΠ΅Π΄Π½Π°Π·Π½Π°ΡΠ΅Π½Ρ Π΄Π»Ρ Π΄Π»Ρ ΠΈΡ ΠΊΠΎΠ½ΠΊΡΠ΅ΡΠ½ΠΎΠΉ ΡΠ΅Π»ΠΈ.ΠΡΠ»ΠΈ Π½Π΅ ΠΏΠΎΠΌΠ½ΠΈΡΡ ΠΎΠ± ΡΡΠΎΠΌ Π΄ΠΎΠ»ΠΆΠ½ΡΠΌ ΠΎΠ±ΡΠ°Π·ΠΎΠΌ, ΠΎΠ½ Π±ΡΠ΄Π΅Ρ Π² ΠΊΠΎΠ½Π΅ΡΠ½ΠΎΠΌ ΠΈΡΠΎΠ³Π΅ ΠΏΠΎΠ»ΡΡΠ°ΡΡΡΡ Π½Π΅ΡΠΎΠ²Π΅ΡΡΠ΅Π½Π½ΡΠ΅ ΠΊΠΎΠ½ΡΡΡΡΠΊΡΠΈΠΈ.
Composite Tutorial | ΠΠ»Π°ΡΡΠΈΡΠ΅ΡΠΊΠ°Ρ ΡΠ΅ΠΎΡΠΈΡ Π»Π°ΠΌΠΈΠ½Π°ΡΠ° (CLT)ΠΠΎΠΌΠΏΠΎΠ·ΠΈΡΠ½ΡΠΉ ΡΡΠ΅Π±Π½ΠΈΠΊ ΠΠ΅ Π·Π°Π±ΡΠ΄ΡΡΠ΅ Π΄ΠΎΠ±Π°Π²ΠΈΡΡ ΡΡΡ ΡΡΡΠ°Π½ΠΈΡΡ Π² Π·Π°ΠΊΠ»Π°Π΄ΠΊΠΈΠΠ±ΡΡΠ°ΡΡΠ΅Π΅ Π²ΠΈΠ΄Π΅ΠΎ ΠΠ²Π΅Π΄ΠΈΡΠ΅ ΡΠ²ΠΎΠΉΡΡΠ²Π° ΠΊΠΎΠΌΠΏΠΎΠ·ΠΈΡΠ½ΠΎΠ³ΠΎ Π²ΠΎΠ»ΠΎΠΊΠ½Π° ΠΈ ΠΌΠ°ΡΡΠΈΡΡ: ΠΠΎΠ΄ΡΠ»Ρ ΠΌΠ°ΡΡΠΈΡΡ, E ΠΌ ΠΠ° ΠΠΎΠ΄ΡΠ»Ρ ΡΠ΄Π²ΠΈΠ³Π° Π²ΠΎΠ»ΠΎΠΊΠ½Π°, G f ΠΠ° ΠΠΎΠ΄ΡΠ»Ρ ΡΠ΄Π²ΠΈΠ³Π° ΠΌΠ°ΡΡΠΈΡΡ, G ΠΌ ΠΠ° ΠΠΎΡΡΡΠΈΡΠΈΠ΅Π½Ρ ΠΡΠ°ΡΡΠΎΠ½Π° Π²ΠΎΠ»ΠΎΠΊΠ½Π°, Ξ½ Ρ ΠΠΎΡΡΡΠΈΡΠΈΠ΅Π½Ρ ΠΡΠ°ΡΡΠΎΠ½Π° ΠΌΠ°ΡΡΠΈΡΡ, Ξ½ ΠΌ ΠΠ»ΠΎΡΠ½ΠΎΡΡΡ Π²ΠΎΠ»ΠΎΠΊΠ½Π°, Ο f ΠΊΠ³ / ΠΌ3 ΠΠ»ΠΎΡΠ½ΠΎΡΡΡ ΠΌΠ°ΡΡΠΈΡΡ, Ο ΠΌ ΠΊΠ³ / ΠΌ3 ΠΠ±ΡΠ΅ΠΌΠ½Π°Ρ Π΄ΠΎΠ»Ρ Π²ΠΎΠ»ΠΎΠΊΠ½Π°, V ΠΠ²Π΅Π΄ΠΈΡΠ΅ ΡΠΈΠ·ΠΈΡΠ΅ΡΠΊΠΈΠ΅ ΡΠ²ΠΎΠΉΡΡΠ²Π° Π»Π°ΠΌΠΈΠ½Π°ΡΠ° ΠΠΎΠ»ΠΈΡΠ΅ΡΡΠ²ΠΎ ΡΠ»ΠΎΠ΅Π², n Π’ΠΎΠ»ΡΠΈΠ½Π° ΡΠ»ΠΎΡ, Ρ ΠΌ ΠΠ»ΠΈΠ½Π°, L ΠΌ ΠΠ°Π·Π°, b ΠΌ Π£Π³ΠΎΠ» Π½Π°ΠΊΠ»ΠΎΠ½Π° ΡΠ»ΠΎΡ ΡΠ²Π΅ΡΡ Ρ Π²Π½ΠΈΠ· (Π΄Π»Ρ ΠΌΠ΅Π½ΡΡΠ΅Π³ΠΎ ΠΊΠΎΠ»ΠΈΡΠ΅ΡΡΠ²Π° ΡΠ»ΠΎΠ΅Π² ΠΎΡΡΠ°Π²ΡΡΠ΅ ΠΏΠΎΠ»Π΅ ΠΏΡΡΡΡΠΌ Π―ΡΠΈΠΊΠΈ) Π£Π³ΠΎΠ» Π½Π°ΠΊΠ»ΠΎΠ½Π° ΡΠ»ΠΎΡ 1 ΠΡΠ°Π΄ΡΡΡ Π£Π³ΠΎΠ» Π½Π°ΠΊΠ»ΠΎΠ½Π° ΡΠ»ΠΎΡ 2 ΠΡΠ°Π΄ΡΡΡ Π£Π³ΠΎΠ» Π½Π°ΠΊΠ»ΠΎΠ½Π° ΡΠ»ΠΎΡ 3 ΠΡΠ°Π΄ΡΡΡ Π£Π³ΠΎΠ» Π½Π°ΠΊΠ»ΠΎΠ½Π° ΡΠ»ΠΎΡ 4 ΠΡΠ°Π΄ΡΡΡ Π£Π³ΠΎΠ» Π½Π°ΠΊΠ»ΠΎΠ½Π° ΡΠ»ΠΎΡ 5 ΠΡΠ°Π΄ΡΡΡ Π£Π³ΠΎΠ» Π½Π°ΠΊΠ»ΠΎΠ½Π° ΡΠ»ΠΎΡ 6 ΠΡΠ°Π΄ΡΡΡ Π£Π³ΠΎΠ» Π½Π°ΠΊΠ»ΠΎΠ½Π° ΡΠ»ΠΎΡ 7 ΠΡΠ°Π΄ΡΡΡ Π£Π³ΠΎΠ» Π½Π°ΠΊΠ»ΠΎΠ½Π° ΡΠ»ΠΎΡ 8 ΠΡΠ°Π΄ΡΡΡ Π£Π³ΠΎΠ» Π½Π°ΠΊΠ»ΠΎΠ½Π° ΡΠ»ΠΎΡ 9 ΠΡΠ°Π΄ΡΡΡ Π£Π³ΠΎΠ» Π½Π°ΠΊΠ»ΠΎΠ½Π° ΡΠ»ΠΎΡ 10 ΠΡΠ°Π΄ΡΡΡ Π ΠΏΡΠ΅Π΄ΠΏΠΎΠ»ΠΎΠΆΠ΅Π½ΠΈΠΈ Ρ
ΠΎΡΠ΄ΠΎΠ²ΠΎΠΉ ΠΆΠ΅ΡΡΠΊΠΎΡΡΠΈ ΡΡΠΈ ΠΆΠ΅ΡΡΠΊΠΎΡΡΠΈ ΡΠΏΡΠ°Π²Π΅Π΄Π»ΠΈΠ²Ρ ΡΠΎΠ»ΡΠΊΠΎ Π΄Π»Ρ
ΠΎΠ΄Π½ΠΎΠ½Π°ΠΏΡΠ°Π²Π»Π΅Π½Π½Π°Ρ Π½Π΅ΡΠ±Π°Π»Π°Π½ΡΠΈΡΠΎΠ²Π°Π½Π½Π°Ρ ΡΠΊΠ»Π°Π΄ΠΊΠ° ΠΈΠ»ΠΈ ΡΠΈΠΌΠΌΠ΅ΡΡΠΈΡΠ½Π°Ρ ΡΠΊΠ»Π°Π΄ΠΊΠ° ΠΏΠΎΡΠ»Π΅Π΄ΠΎΠ²Π°ΡΠ΅Π»ΡΠ½ΠΎΡΡΠ΅ΠΉ. ΠΡΡΠ΅ΠΊΡΠΈΠ²Π½Π°Ρ ΠΆΠ΅ΡΡΠΊΠΎΡΡΡ Π½Π° ΠΈΠ·Π³ΠΈΠ± "EI" ΠΡΡΠ΅ΠΊΡΠΈΠ²Π½Π°Ρ ΠΆΠ΅ΡΡΠΊΠΎΡΡΡ Π½Π° ΠΊΡΡΡΠ΅Π½ΠΈΠ΅ "GJ" ΠΡΡΠ΅ΠΊΡΠΈΠ²Π½Π°Ρ ΡΠΎΠΏΡΡΠΆΠ΅Π½Π½Π°Ρ ΠΆΠ΅ΡΡΠΊΠΎΡΡΡ Π½Π° ΠΈΠ·Π³ΠΈΠ±-ΠΊΡΡΡΠ΅Π½ΠΈΠ΅ "K" Π‘Π»Π΅Π΄ΡΡΡΠΈΠ΅ ΠΌΠ°ΡΡΠΈΡΡ Π΄Π΅ΠΉΡΡΠ²ΠΈΡΠ΅Π»ΡΠ½Ρ Π΄Π»Ρ Π»ΡΠ±ΠΎΠΉ ΠΏΠΎΡΠ»Π΅Π΄ΠΎΠ²Π°ΡΠ΅Π»ΡΠ½ΠΎΡΡΠΈ ΡΡΠ΅ΠΊΠΈΡΠΎΠ²Π°Π½ΠΈΡ ΠΠ»Ρ ΡΠΏΡΠ°Π²ΠΊΠΈ: ΠΠ΅ΡΡΠΊΠΎΡΡΡ Π½Π° ΠΈΠ·Π³ΠΈΠ± D (1,1) D (1,2) D (1,3) D (2,1) D (2,2) D (2,3) D (3,1) D (3,2) D (3,3) ΠΠ΅ΡΡΠΊΠΎΡΡΡ ΠΏΡΠΈ ΡΠ°ΡΡΡΠΆΠ΅Π½ΠΈΠΈ Π (1,1) Π (1,2) Π (1,3) Π (2,1) Π (2,2) Π (2,3) Π (3,1) Π (3,2) Π (3,3) ΠΠ΅ΡΡΠΊΠΎΡΡΡ ΠΌΡΡΡΡ Π (1,1) Π (1,2) Π (1,3) Π (2,1) Π (2,2) Π (2,3) Π (3,1) Π (3,2) Π (3,3) Π Π°ΡΡΠ΅Ρ ΡΡΡΠ΅ΠΊΡΠΈΠ²Π½ΡΡ ΠΆΠ΅ΡΡΠΊΠΎΡΡΠ΅ΠΉ ΠΠ°ΠΌΠΈΠ½ΠΈΡΠΎΠ²Π°Π½Π½Π°Ρ ΠΊΠΎΠΌΠΏΠΎΠ·ΠΈΡΠ½Π°Ρ Π±Π°Π»ΠΊΠ° (ΠΊΠ»Π°ΡΡΠΈΡΠ΅ΡΠΊΠ°Ρ ΡΠ΅ΠΎΡΠΈΡ Π»Π°ΠΌΠΈΠ½Π°ΡΠ°)ΠΠ²Π΅Π΄Π΅Π½ΠΈΠ΅ΠΡΠΈΠΌΠ΅Π½Π΅Π½ΠΈΠ΅ Π°ΡΠΌΠΈΡΠΎΠ²Π°Π½Π½ΡΠ΅ Π²ΠΎΠ»ΠΎΠΊΠ½ΠΎΠΌ ΠΊΠΎΠΌΠΏΠΎΠ·ΠΈΡΠ½ΡΠ΅ ΠΌΠ°ΡΠ΅ΡΠΈΠ°Π»Ρ Π² Π°ΡΡΠΎΠΊΠΎΡΠΌΠΈΡΠ΅ΡΠΊΠΎΠΉ ΠΏΡΠΎΠΌΡΡΠ»Π΅Π½Π½ΠΎΡΡΠΈ ΠΏΡΠΎΡΡΠΈΡΠ°ΡΡΡΡ ΠΎΡ ΠΎΡ ΠΊΠΎΠΌΠΌΠ΅ΡΡΠ΅ΡΠΊΠΈΡ Π΄ΠΎ Π²ΠΎΠ΅Π½Π½ΡΡ ΡΠ°ΠΌΠΎΠ»Π΅ΡΠΎΠ², ΡΠ°ΠΊΠΈΡ ΠΊΠ°ΠΊ Boeing F18, B2 Stealth Bomber, AV-8B Harrier (ΠΠΆΠΎΠ½Ρ, 1998).ΠΡΠΈΠ²Π»Π΅ΠΊΠ°ΡΠ΅Π»ΡΠ½ΠΎΡΡΡ ΠΊΠΎΠΌΠΏΠΎΠ·ΠΈΡΠΎΠ² Π·Π°ΠΊΠ»ΡΡΠ°Π΅ΡΡΡ Π² ΠΈΡ ΠΌΠ΅Ρ Π°Π½ΠΈΡΠ΅ΡΠΊΠΈΠ΅ ΡΠ²ΠΎΠΉΡΡΠ²Π°; ΡΠ°ΠΊΠΈΠ΅ ΠΊΠ°ΠΊ Π²Π΅Ρ, ΠΏΡΠΎΡΠ½ΠΎΡΡΡ, ΠΆΠ΅ΡΡΠΊΠΎΡΡΡ, ΠΊΠΎΡΡΠΎΠ·ΠΈΡ ΡΠΎΠΏΡΠΎΡΠΈΠ²Π»Π΅Π½ΠΈΠ΅, ΡΡΡΠ°Π»ΠΎΡΡΡ ΠΆΠΈΠ·Π½ΠΈ. ΠΠΎΠΌΠΏΠΎΠ·ΠΈΡΡ ΡΠΈΡΠΎΠΊΠΎ ΠΈΡΠΏΠΎΠ»ΡΠ·ΡΡΡΡΡ Π΄Π»Ρ ΡΡΠ»Π΅ΠΉ. ΡΠ°ΠΊΠΈΠ΅ ΠΊΠ°ΠΊ ΡΠ»Π΅ΡΠΎΠ½Ρ, Π·Π°ΠΊΡΡΠ»ΠΊΠΈ, ΡΡΠ°Π±ΠΈΠ»ΠΈΠ·Π°ΡΠΎΡΡ, ΡΡΠ»ΠΈ Π½Π°ΠΏΡΠ°Π²Π»Π΅Π½ΠΈΡ, Π° ΡΠ°ΠΊΠΆΠ΅ ΠΏΠΎΠ²ΠΎΡΠΎΡΠ½ΡΠ΅ ΠΈ Π½Π΅ΠΏΠΎΠ΄Π²ΠΈΠΆΠ½ΡΠ΅ ΠΊΡΡΠ»ΡΡ. ΠΠΎΡΡΠΎΠΌΡ Π°Π½Π°Π»ΠΈΠ· ΠΊΠΎΠΌΠΏΠΎΠ·ΠΈΡΠ½ΡΡ ΠΊΠΎΠ½ΡΡΡΡΠΊΡΠΈΠΉ Π½Π΅ΠΎΠ±Ρ ΠΎΠ΄ΠΈΠΌ Π΄Π»Ρ Π°ΡΡΠΎΠΊΠΎΡΠΌΠΈΡΠ΅ΡΠΊΠ°Ρ ΠΏΡΠΎΠΌΡΡΠ»Π΅Π½Π½ΠΎΡΡΡ. ΠΡΠ½ΠΎΠ²Π½ΠΎΠ΅ ΠΏΡΠ΅ΠΈΠΌΡΡΠ΅ΡΡΠ²ΠΎ ΠΊΠΎΠΌΠΏΠΎΠ·ΠΈΡΠΎΠ² - ΠΈΡ Π³ΠΈΠ±ΠΊΠΎΡΡΡ Π² Π΄ΠΈΠ·Π°ΠΉΠ½. ΠΠ΅Ρ Π°Π½ΠΈΡΠ΅ΡΠΊΠΈΠ΅ ΡΠ²ΠΎΠΉΡΡΠ²Π° Π»Π°ΠΌΠΈΠ½Π°ΡΠ° ΠΌΠΎΠΆΠ½ΠΎ ΠΈΠ·ΠΌΠ΅Π½ΠΈΡΡ ΠΏΡΠΎΡΡΠΎ ΠΈΠ·ΠΌΠ΅Π½Π΅Π½ΠΈΠ΅ ΠΏΠΎΡΠ»Π΅Π΄ΠΎΠ²Π°ΡΠ΅Π»ΡΠ½ΠΎΡΡΠΈ ΡΠΊΠ»Π°Π΄ΠΊΠΈ, ΡΠΊΠ»Π°Π΄ΠΊΠΈ Π²ΠΎΠ»ΠΎΠΊΠΎΠ½ ΠΈ ΡΠΎΠ»ΡΠΈΠ½Ρ ΠΊΠ°ΠΆΠ΄ΠΎΠ³ΠΎ ΡΠ»ΠΎΡ, ΠΊΠΎΡΠΎΡΡΠΉ ΠΏΡΠΈΠ²ΠΎΠ΄ΠΈΡ ΠΊ ΠΎΠΏΡΠΈΠΌΠΈΠ·Π°ΡΠΈΠΈ Π² ΠΏΡΠΎΡΠ΅ΡΡΠ΅ ΠΏΡΠΎΠ΅ΠΊΡΠΈΡΠΎΠ²Π°Π½ΠΈΡ. Π‘ΠΎΡΡΠ°Π²Π½Π°Ρ Π±Π°Π»ΠΊΠ°
ΠΌΠΎΠ΄Π΅Π»ΠΈΡΡΠ΅ΡΡΡ Π½Π° ΠΎΡΠ½ΠΎΠ²Π΅ ΠΈΠ·Π³ΠΈΠ±Π°ΡΡΠ΅Π³ΠΎ ΠΌΠΎΠΌΠ΅Π½ΡΠ° ΠΏΠΎ Ρ
ΠΎΡΠ΄Π΅ (ΠΎΠΊΠΎΠ»ΠΎ ΠΎΡΠΈ z )
Π±ΡΠ΄ΡΡΠΈ ΠΌΠ°Π»ΡΠΌ ΠΏΠΎ ΡΡΠ°Π²Π½Π΅Π½ΠΈΡ Ρ ΠΌΠΎΠΌΠ΅Π½ΡΠΎΠΌ ΡΠ°Π·ΠΌΠ°Ρ
Π° (ΠΎΡΠ½ΠΎΡΠΈΡΠ΅Π»ΡΠ½ΠΎ ΠΎΡΠΈ y , ΡΠΌ. ΠΡΠΈΠ²Π΅Π΄Π΅Π½Π½ΡΠ΅ ΠΊΠΎΠ½ΡΡΠ°Π½ΡΡ ΠΆΠ΅ΡΡΠΊΠΎΡΡΠΈ Π² ΠΌΠ°ΡΠ΅ΡΠΈΠ°Π»ΡΠ½ΡΠ΅ ΠΎΡΠ½ΠΎΠ²Π½ΡΠ΅ Π½Π°ΠΏΡΠ°Π²Π»Π΅Π½ΠΈΡ: Π³Π΄Π΅ T - ΠΏΡΠ΅ΠΎΠ±ΡΠ°Π·ΠΎΠ²Π°Π½ΠΈΠ΅ ΠΌΠ°ΡΡΠΈΡΠ°, ΠΊΠΎΡΠΎΡΠ°Ρ ΠΈΡΠΏΠΎΠ»ΡΠ·ΡΠ΅ΡΡΡ Π΄Π»Ρ ΠΏΡΠ΅ΠΎΠ±ΡΠ°Π·ΠΎΠ²Π°Π½ΠΈΡ ΠΏΡΠΈΠ²Π΅Π΄Π΅Π½Π½ΡΡ ΠΊΠΎΠ½ΡΡΠ°Π½Ρ ΠΆΠ΅ΡΡΠΊΠΎΡΡΠΈ ΠΈΠ· Π½Π°ΠΏΡΠ°Π²Π»Π΅Π½ΠΈΡ ΠΎΡΠ½ΠΎΠ²Π½ΡΡ ΠΌΠ°ΡΠ΅ΡΠΈΠ°Π»ΡΠ½ΡΡ Π²ΠΎΠ»ΠΎΠΊΠΎΠ½ Π½Π° Π³Π»ΠΎΠ±Π°Π»ΡΠ½ΡΠΉ Π»ΡΡ ( x, y, z ) ΠΊΠΎΠΎΡΠ΄ΠΈΠ½Π°ΡΡ. Π’ΠΎΠ³Π΄Π° ΠΏΠΎΠ»ΡΡΠ΅Π½Π½ΡΠΉ ΠΏΡΠ΅ΠΎΠ±ΡΠ°Π·ΠΎΠ²Π°Π½Π½ΡΠ΅ ΠΊΠΎΠ½ΡΡΠ°Π½ΡΡ ΠΏΡΠΈΠ²Π΅Π΄Π΅Π½Π½ΠΎΠΉ ΠΆΠ΅ΡΡΠΊΠΎΡΡΠΈ Π΄Π»Ρ ΠΎΠ΄Π½ΠΎΠ½Π°ΠΏΡΠ°Π²Π»Π΅Π½Π½ΡΡ ΠΈΠ»ΠΈ ΠΎΡΡΠΎΡΡΠΎΠΏΠ½ΡΡ ΡΠΎΡΡΠ°Π²Π½ΠΎΠΉ ΠΏΠΎ Π΅Π³ΠΎ ΠΎΡΠ½ΠΎΠ²Π½ΡΠΌ Π½Π°ΠΏΡΠ°Π²Π»Π΅Π½ΠΈΡΠΌ (Berthelot, 1999): ΠΠ±Π° ΡΡΠ°Π²Π½Π΅Π½ΠΈΡ (ΡΠΌ. ΠΡΡΠ΅) ΠΌΠΎΠΆΠ½ΠΎ ΠΎΠ±ΡΠ΅Π΄ΠΈΠ½ΠΈΡΡ Π² ΠΎΠ΄Π½ΠΎ ΠΎΠ±ΡΠ΅ΠΈΠ·Π²Π΅ΡΡΠ½ΠΎΠ΅ ΡΡΠ°Π²Π½Π΅Π½ΠΈΠ΅. ΠΊΠ°ΠΊ Β«ΠΡΠ½ΠΎΠ²Π½ΠΎΠ΅ ΡΡΠ°Π²Π½Π΅Π½ΠΈΠ΅Β».ΠΠ°ΡΠ΅ΡΠΈΠ°Π»ΡΠ½ΠΎΠ΅ ΡΡΠ°Π²Π½Π΅Π½ΠΈΠ΅ ΠΎΠΏΠΈΡΡΠ²Π°Π΅Ρ ΠΌΠ°ΡΡΠΈΡΠ° ΠΆΠ΅ΡΡΠΊΠΎΡΡΠΈ Π»Π°ΠΌΠΈΠ½Π°ΡΠ½ΠΎΠΉ ΠΏΠ»ΠΈΡΡ. Π Π΅Π·ΡΠ»ΡΡΠΈΡΡΡΡΠΈΠ΅ ΡΠΈΠ»Ρ ΠΈ ΠΌΠΎΠΌΠ΅Π½ΡΡ ΡΠ°Π²Π½Ρ ΡΡΠ½ΠΊΡΠΈΠΈ Π΄Π΅ΡΠΎΡΠΌΠ°ΡΠΈΠΉ ΠΈ ΠΊΡΠΈΠ²ΠΈΠ·Π½Ρ Π² ΠΏΠ»ΠΎΡΠΊΠΎΡΡΠΈ (Berthelot, 1999). Π³Π΄Π΅ ΡΠ°ΡΡΡΠΎΡΠ½ΠΈΠ΅ ΠΎΡ ΡΡΠ΅Π΄Π½Π΅ΠΉ ΠΏΠ»ΠΎΡΠΊΠΎΡΡΠΈ Π»Π°ΠΌΠΈΠ½Π°ΡΠ° (Π ΠΈΡΡΠ½ΠΎΠΊ 3). . ΠΠ»Ρ ΠΌΡΡΡΡ ΠΈΠ·Π³ΠΈΠ±Π° ΠΈ ΠΊΡΡΡΠ΅Π½ΠΈΡ ΠΌΠΎΠΌΠ΅Π½Ρ ΠΏΠΎ Ρ ΠΎΡΠ΄Π΅ Mx ΡΠ°Π²Π΅Π½ ΠΏΡΠΈΠ½ΠΈΠΌΠ°Π΅ΡΡΡ ΡΠ°Π²Π½ΡΠΌ Π½ΡΠ»Ρ, ΡΠ°ΠΊ ΡΡΠΎ ΠΊΡΠΈΠ²ΠΈΠ·Π½Π° kx ΠΌΠΎΠΆΠ΅Ρ Π±ΡΡΡ ΠΈΡΠΊΠ»ΡΡΠ΅Π½Π° ΠΈΠ· (ΡΠΌ. Π²ΡΡΠ΅), Π° Π·Π°ΡΠ΅ΠΌ ΠΌΠ°ΡΡΠΈΡΠ½ΠΎΠ΅ ΡΡΠ°Π²Π½Π΅Π½ΠΈΠ΅ (11) ΡΠ²ΠΎΠ΄ΠΈΡΡΡ ΠΊ ΡΠ»Π΅Π΄ΡΡΡΠ΅ΠΌΡ Π²ΠΈΠ΄Ρ: Π³Π΄Π΅, ΠΠΎΠ΄Π΅Π»Ρ EI, GJ ΠΈ K, ΠΏΡΠ΅Π΄ΡΡΠ°Π²Π»ΡΡΡ ΡΠΎΠ±ΠΎΠΉ ΡΡΡΠ΅ΠΊΡΠΈΠ²Π½ΡΠ΅ ΠΆΠ΅ΡΡΠΊΠΎΡΡΠΈ Π±Π°Π»ΠΊΠΈ Π² Π³Π»ΠΎΠ±Π°Π»ΡΠ½ΠΎΠΌ ( x, y, z ) ΡΠΈΡΡΠ΅ΠΌΡ ΠΊΠΎΠΎΡΠ΄ΠΈΠ½Π°Ρ. EI, GJ, ΠΈ K ΠΏΡΠ΅Π΄ΡΡΠ°Π²Π»ΡΡΡ, ΡΠΎΠΎΡΠ²Π΅ΡΡΡΠ²Π΅Π½Π½ΠΎ ΠΆΠ΅ΡΡΠΊΠΎΡΡΡ Π½Π° ΠΈΠ·Π³ΠΈΠ±, ΠΆΠ΅ΡΡΠΊΠΎΡΡΡ Π½Π° ΠΊΡΡΡΠ΅Π½ΠΈΠ΅ ΠΈ ΠΈΠ·Π³ΠΈΠ±-ΠΊΡΡΡΠ΅Π½ΠΈΠ΅ ΡΠΎΠΏΡΡΠΆΠ΅Π½Π½Π°Ρ ΠΆΠ΅ΡΡΠΊΠΎΡΡΡ. ΠΡΡΠ΅ΠΊΡΠΈΠ²Π½Π°Ρ ΠΆΠ΅ΡΡΠΊΠΎΡΡΡ Π·Π°Π²ΠΈΡΠΈΡ ΠΎΡ ΡΠ³Π»Π° ΡΠ»ΠΎΡ, ΡΠΎΠ»ΡΠΈΠ½Π° ΠΈ ΠΏΠΎΡΠ»Π΅Π΄ΠΎΠ²Π°ΡΠ΅Π»ΡΠ½ΠΎΡΡΡ ΡΠΊΠ»Π°Π΄ΠΊΠΈ. ΠΠ°Π³ΡΡΠ·ΠΊΠΈ - ΠΠ»ΠΎΠ³ Π°ΡΡΠΎΠΊΠΎΡΠΌΠΈΡΠ΅ΡΠΊΠΎΠΉ ΡΠ΅Ρ Π½ΠΈΠΊΠΈΠΠ»ΠΎΠ³ Π°ΡΡΠΎΠΊΠΎΡΠΌΠΈΡΠ΅ΡΠΊΠΎΠΉ ΡΠ΅Ρ Π½ΠΈΠΊΠΈΠ’Π°Π±Π»ΠΈΡΠ° Π°Π½Π°Π»ΠΈΠ·Π° ΠΊΠΎΠΌΠΏΠΎΠ·ΠΈΡΠ½ΠΎΠ³ΠΎ Π»Π°ΠΌΠΈΠ½Π°ΡΠ° ΠΠ»Π΅ΠΊΡΡΠΎΠ½Π½Π°Ρ ΡΠ°Π±Π»ΠΈΡΠ° Excel, ΠΊΠΎΡΠΎΡΠ°Ρ Π²ΡΡΠΈΡΠ»ΡΠ΅Ρ ΠΌΠ°ΡΡΠΈΡΡ A, B, D Π΄Π»Ρ Π»ΡΠ±ΠΎΠ³ΠΎ Π°Π½ΠΈΠ·ΠΎΡΡΠΎΠΏΠ½ΠΎΠ³ΠΎ ΠΊΠΎΠΌΠΏΠΎΠ·ΠΈΡΠ½ΠΎΠ³ΠΎ Π»Π°ΠΌΠΈΠ½Π°ΡΠ° ΠΈ Π²ΠΎΠ·Π²ΡΠ°ΡΠ°Π΅Ρ Π΄Π΅ΡΠΎΡΠΌΠ°ΡΠΈΠΈ ΠΈ Π½Π°ΠΏΡΡΠΆΠ΅Π½ΠΈΡ ΡΠ»ΠΎΠ΅Π² Π΄Π»Ρ ΠΎΠΏΡΠ΅Π΄Π΅Π»Π΅Π½Π½ΡΡ
ΠΌΠ΅ΠΌΠ±ΡΠ°Π½Π½ΡΡ
Π½Π°Π³ΡΡΠ·ΠΎΠΊ, ΠΈΠ·Π³ΠΈΠ±Π°ΡΡΠΈΡ
ΠΌΠΎΠΌΠ΅Π½ΡΠΎΠ² ΠΈ ΡΠ΅ΠΏΠ»ΠΎΠ²ΡΡ
Π½Π°Π³ΡΡΠ·ΠΎΠΊ, Π²ΠΎΠ·Π½ΠΈΠΊΠ°ΡΡΠΈΡ
Π² ΡΠ΅Π·ΡΠ»ΡΡΠ°ΡΠ΅ ΠΎΡ
Π»Π°ΠΆΠ΄Π΅Π½ΠΈΡ ΠΏΡΠΈ ΠΎΡΠ²Π΅ΡΠΆΠ΄Π΅Π½ΠΈΠΈ. |
ΠΠΎΠ»ΡΡΠ°Π΅ΡΡΡ, ΠΏΠΎ Π΄Π»ΠΈΠ½Π΅ Π½ΡΠΆΠ½ΠΎ ΡΡΡΡ Π±ΠΎΠ»Π΅Π΅ 4,5 Π΄ΠΎΡΠΎΠΊ.


ΠΠ»Ρ ΡΡΠΎΠ³ΠΎ ΡΠ΄ΠΎΠ±Π½Π΅ΠΉ Π²ΡΠ΅ ΠΈΡΠΏΠΎΠ»ΡΠ·ΠΎΠ²Π°ΡΡ 5-7 ΠΌ ΡΡΠ»Π΅ΡΠΊΡ. ΠΡΠ»ΠΈ ΠΏΠΎΠΌΠ΅ΡΠ΅Π½ΠΈΡ ΠΈΠΌΠ΅Π΅Ρ Π½Π΅ΡΡΠ°Π½Π΄Π°ΡΡΠ½ΡΡ ΡΠΎΡΠΌΡ, ΡΠΎ ΡΠ΄ΠΎΠ±Π½Π΅ΠΉ Π²ΡΠ΅Π³ΠΎ ΡΠ°Π·Π±ΠΈΡΡ ΠΊΠΎΠΌΠ½Π°ΡΡ Π½Π° ΡΡΠ°ΡΡΠΊΠΈ (ΠΏΡΡΠΌΠΎΡΠ³ΠΎΠ»ΡΠ½ΠΈΠΊ, ΠΊΠ²Π°Π΄ΡΠ°ΡΠ° ΠΈ ΡΡΠ΅ΡΠ³ΠΎΠ»ΡΠ½ΠΈΠΊ), ΠΈΠ·ΠΌΠ΅ΡΠΈΡΡ ΠΊΠ°ΠΆΠ΄ΡΠΉ ΠΎΡΠ΄Π΅Π»ΡΠ½ΡΠΉ ΡΡΠ°ΡΡΠΎΠΊ ΠΈ Π²ΡΡΡΠΈΡΠ°ΡΡ ΠΎΠ±ΡΡΡ ΠΏΠ»ΠΎΡΠ°Π΄Ρ Π΄Π»Ρ ΠΊΠ°ΠΆΠ΄ΠΎΠ³ΠΎ ΠΈΠ· Π½ΠΈΡ
.
ΠΡΠΎΠ²Π΅ΡΠ΅Π½ΠΎ ΠΌΠ°ΡΡΠ΅ΡΠ°ΠΌΠΈ.
Π€ΠΈΠ³ΡΡΠ° 2). Π’ΠΎΠ³Π΄Π° ΠΌΠΎΠΌΠ΅Π½ΡΠΎΠΌ ΠΏΠΎ Ρ
ΠΎΡΠ΄Π΅ ΠΏΡΠ΅Π½Π΅Π±ΡΠ΅Π³Π°ΡΡ. ΠΠΎΠΌΠΏΠΎΠ·ΠΈΡΠ½ΡΠΉ ΠΌΠ°ΡΠ΅ΡΠΈΠ°Π»
ΠΎΡΠ½ΠΎΡΡΡΠΈΠΉΡΡ ΠΊ ΡΡΠΎΠΌΡ ΠΈΡΡΠ»Π΅Π΄ΠΎΠ²Π°Π½ΠΈΡ ΠΏΡΠ΅Π΄ΡΡΠ°Π²Π»ΡΠ΅Ρ ΡΠΎΠ±ΠΎΠΉ Π°ΡΠΌΠΈΡΠΎΠ²Π°Π½Π½ΡΠΉ ΠΎΠ΄Π½ΠΎΠ½Π°ΠΏΡΠ°Π²Π»Π΅Π½Π½ΡΠΌ Π²ΠΎΠ»ΠΎΠΊΠ½ΠΎΠΌ ΠΊΠΎΠΌΠΏΠΎΠ·ΠΈΡ.
ΠΌΠ°ΡΠ΅ΡΠΈΠ°Π». ΠΡΠΈΠ²Π΅Π΄Π΅Π½Π½Π°Ρ ΠΈΠ½ΡΠΎΡΠΌΠ°ΡΠΈΡ ΠΎ Π»ΡΠ±ΠΎΠΌ ΠΎΠ΄Π½ΠΎΠ½Π°ΠΏΡΠ°Π²Π»Π΅Π½Π½ΠΎΠΌ ΠΊΠΎΠΌΠΏΠΎΠ·ΠΈΡΠ½ΠΎΠΌ ΠΌΠ°ΡΠ΅ΡΠΈΠ°Π»Π΅
ΠΌΠΎΠ΄ΡΠ»Ρ ΡΠΏΡΡΠ³ΠΎΡΡΠΈ ΠΊΠ°ΠΊ ΠΏΠΎ ΠΏΡΠΎΠ΄ΠΎΠ»ΡΠ½ΠΎΠΉ, ΡΠ°ΠΊ ΠΈ ΠΏΠΎ ΠΏΠΎΠΏΠ΅ΡΠ΅ΡΠ½ΠΎΠΉ ΠΎΡΠΈ (ΡΠΌ.
Π ΠΈΡΡΠ½ΠΊΠΈ 1 ΠΈ 2), ΠΊΠΎΡΡΡΠΈΡΠΈΠ΅Π½Ρ Π―Π΄ΠΎΠ²ΠΈΡΠΎΡΡΠΈ ΠΈ ΠΌΠΎΠ΄ΡΠ»Ρ ΡΠ΄Π²ΠΈΠ³Π° Π² ΠΏΡΠΈΠ½ΡΠΈΠΏΠ΅
Π½Π°ΠΏΡΠ°Π²Π»Π΅Π½ΠΈΡ.