Как обустроить однокомнатную хрущевку – Дизайн однокомнатной хрущевки: 16 советов + фото
Дизайн однокомнатной хрущевки: создаем стильные апартаменты из скромного жилища (50 фото)
Ищем авторов для нашего сайта, которые ОЧЕНЬ хорошо разбираются в дизайне интерьеров.Обращаться на почту [email protected].
28.11.2017
Чаще всего первым жильем, которое приобретает для себя молодая семья, является однокомнатная квартира. После покупки перед счастливыми обладателями встает вопрос о ремонте и благоустройстве жилища. Одну единственную комнату сложно оборудовать стильно, функционально и уютно. Если же новоселам предстоит дизайн однокомнатной хрущевки, задача становится … еще интереснее. По крайней мере, так считают дизайнеры.
Что представляет собой однокомнатная квартира в хрущевке
В большинстве типовых домов «хрущевской» постройки однокомнатная квартира представляет собой очень маленькую прихожую, из которой ведут двери в совмещенный санузел и в комнату. В ряде случаев комната проходная, пройдя через нее вдоль внешней стены санузла, попадают в кухню размером 5-7 м2. На балкон, если таковой имеется, можно попасть из комнаты.
Скромные габариты каждого помещения и жилища в целом привели к тому, что перепланировка однокомнатной квартиры хрущевки стала очень популярна.
Варианты перепланировки
Перепланировкой считается любое изменение перегородок. Сносить несущие стены запрещено категорически, в случае с ненагруженными стенами все несколько проще. Можно составить проект, согласовать его в соответствующих органах и приступать к реализации задумки. Перед составлением проекта учтите, что следующие переделки будут невозможны:
- увеличение площади туалета, ванной и кухни возможно только за счет коридора, располагать их над жилыми комнатами нельзя;
- расширить площадь кухни за счет санузла не разрешено;
- если в кухне установлена газовая плита, объединять ее с комнатой также невозможно.
Чаще всего перепланировка однокомнатной хрущевки осуществляется двумя способами: превращением ее в квартиру-студию со сносом всех перегородок, кроме санузла и объединением с балконом. В обоих случаях полезная площадь жилища станет больше, а само оно без лишних стен будет гораздо светлее. Хорошо освещенное пространство всегда кажется просторнее, как уверяют дизайнеры.

Квартира-студия
Перед тем, как решиться на снос стен, еще раз продумайте, будет ли это удобно каждому домочадцу, ведь кухня в однокомнатной хрущевке хоть и маленькая, но все же представляет собой отдельную комнатку, в которой можно уединиться и не мешать остальным членам семьи. После объединения деление на функциональные зоны будет весьма условным – при помощи приемов зонирования.
Если сомнений не возникло и будущий простор ценнее укромных уголков, обратите внимание еще на один важный момент: чтобы запахи при готовке не распространялись на всю квартиру, плиту необходимо будет оборудовать мощной, но тихой вытяжкой. В противном случае в скором времени вся квартира пропитается кухонными ароматами, а шумно работающая вытяжка будет раздражать отдыхающих. Еще на этапе работ по ремонту в кухне проверьте работу вентиляции. Если она покажется вам недостаточной, примите меры по ее прочистке, иначе загрязненный воздух после вытяжки будет попадать обратно в квартиру. Усилить кухонную вентиляцию можно при помощи установки приточного клапана.


Приемы зонирования пространства в квартире-студии
После сноса стен у нас образовалось одно большое помещение. Для эффективного использования добавленных квадратных метров в нем нужно выделить зоны для отдыха, работы, сна, приема пищи, готовки. Зонирование однокомнатной хрущевки реализуют несколькими способами:
- использованием разных отделочных материалов. Например, зону готовки выделяют напольной плиткой, а обеденную – ламинатом;
- освещением – для каждой зоны применяют отдельные источники света;
- занавесями – они скроют спальную зону днем и добавят уюта ночью;
- мебелью – в данном случае она не только будет выполнять свою основную функцию, но и служить разделителем зон.

Приведем несколько примеров наиболее эффективного зонирования с помощью мебели:
- при помощи барной стойки разделяют зоны готовки и приема пищи;
- стеллаж с открытыми полками при отделении рабочего места не будет загораживать свет и окажется удобным местом для хранения документов и оргтехники;
- тумбой отделяют прихожую от комнаты. Заодно в ней поместятся всякие нужные мелочи – ключи, перчатки, сумки.
Чтобы добиться наибольшего эффекта, дизайнеры рекомендуют использовать для зонирования сразу несколько способов.
Используем балкон
Если в квартире имеется балкон, его также можно присоединить к полезной жилой площади. Чтобы использовать его с пользой, балкон предварительно застекляют и утепляют. Вариантов практичного применения балконной площади немного:
- если балкон примыкает к жилой комнате, там оборудуют рабочую зону с компьютерным столом и стел
roomplan.ru
Интерьер маленькой однокомнатной квартиры с угловой планировкой

Вы не знаете, как расположить в апартаментах с общей площадью 30 кв. м. все необходимые вещи, мебель и бытовую технику, при этом, не загромождая ограниченного пространства? Сегодня мы вас познакомим с тремя уникальными и бесподобными вариантами интерьера маленькой квартиры, разработанными гениальным дизайнером Ольгой Бондарь.
Как считают многие конструкторы и архитекторы, угловые апартаменты являются самыми некомфортными для жизни и отдыха. Два окна в комнате создают плохую тепловую изоляцию и определённые затруднения с размещением гарнитура. Сейчас мы вас познакомим с бесподобными вариациями обустройства жилья в типовом доме типа 1–511 для разных собственников.

Ольга Бондарь является талантливым дизайнером и специалистом, которая работала в области разработки уникальных проектов с 2012 года. Основной целью своей профессиональной деятельности она считает воплощение функционального, практичного и комфортабельного для жизни пространства.
Угловые однокомнатные апартаменты в необычных домах типа 1–511 имеют как недостатки планировки (маленький метраж кухонного помещения с ванной и отсутствие возможности их расширения), а также явные достоинства: наличие трёх оконных проёмов и внутренних стен. Эти конструкции обладают большим потенциалом для декорирования убранства.
Сегодня мы вам расскажем о 3 вариациях перепланировки угловой однушки с метражом 31 кв. м. для разных видов жильцов. Обратите внимание, что все изменения вы должны изначально согласовать в БТИ.

Информация
- Типовая серия 5-этажных сооружений 1–511 имеется практически во всех районах Москвы. Возведение этих строений осуществлялось в 50-60-е гг. прошлого столетия.
- Различные модификации планировки квартир имеют существенные отличия, связанные с высотой потолков, качеством кирпичной кладки и типом кровельного материала.
- Наружные фасады выполнены с помощью семищелевого или пористо-дырчатого кирпича, их толщина равна 40 см.
- Межкомнатные перегородки возведены с применением гипсобетонных блоков с размером в 8 см, а потолочные перекрытия из железобетонных плит.

Вариант №1: квартирка для неженатого мужчины
Цели
Оборудовать комнату для просмотра телевизора и приёма гостей; разделить пространство на разные функциональные зоны с великолепным дизайном интерьера – спальню, кухню и кабинет, а также организовать большую гардеробную; гармонично соединить гостевой салон и место для приготовления пищи, оснастить ванную всеми необходимыми приспособлениями.Решение
Необходимо удалить перегородку, разделяющую кухню и большой зал, а также установить дополнительные стены для изоляции будуара. За счёт такой перепланировки спальня располагается в закрытой области, а все остальные области представляют собой открытое свободное пространство.Недостатки
Строительство стационарных конструкций, загромождающих скромное помещение.

Вариант №2: квартирка для семейной пары
Цели
Сформировать вместительное жилое пространство; оборудовать уголок для просмотра телевизора и приёма друзей; установить большую двухместную постель; оснастить функциональную кухонную область дизайнерской мебелью с П-образной столешницей.Решение
Дверь была перенесена на кухню, демонстрирована стена и проём в комнату из коридора. От входной зоны спальное место было отделено маленькой ширмой, изготовленной с применением тонкого матового стекла. Такая бесподобная планировка даёт возможность в крохотных апартаментах расположить все необходимые зоны, не загромождающие убранство стационарными конструкциями. К тому же будуар при необходимости можно зонировать при помощи подиума с выдвижными ящиками для хранения, постельного белья и одежды, шторками или низким книжным стеллажом. Также вы можете оборудовать раздвижные перегородки на лоджии.Достоинства
Множество шкафов для хранения; уютный салон для отдыха, трапезы и просмотра телепередач.Недостатки
Открытое спальное место.

Вариант №3: квартирка для семьи с маленьким ребёнком
Цели
Оборудовать изолированную детскую для малыша (практичный стол, постель, шкаф), отдельный родительский будуар и комфортную гостиную, оснастить санузел сантехникой и бытовыми приборами.Достоинства
Изолированная детская и родительская спальня; уютный зал для приёма гостей; оборудован вместительный гардероб.Недостатки
Нет полноценной постели в спальне для взрослых; большое количество перегородок, загромождающих помещение.

Попробуйте использовать одну из этих бесподобных и практичных вариаций перепланировки для преображения собственного дома мечты. В результате вы сможете создать комфортный, красивый и эстетичный интерьер, поражающий своей функциональностью.
interiorsmall.ru
Хрущевка – свежий взгляд на малогабаритную квартиру
Крохотная кухня, прихожая «зашёл-вышел», плюс низкие потолки. Стоит ли продолжать? Каждый владелец хрущевки знает, что именно такие архитектурные «преимущества» имеет знаменитая малогабаритка.Оглавление:
Идеи гостиной Маленькая спальня Перепланировка Хрущевки? Дизайн двухкомнатной Хрущевки Дизайн однокомнатной Хрущевки Как увеличить пространство? Помещения в малогабаритной квартире

Изменить интерьер и любым способом увеличить пространство мечтают обладатели квартир, построенных в эпоху Никиты Сергеевича. Мечтают, чтобы дизайн квартиры создавал функциональность, красоту и уют.
Однокомнатная или двухкомнатная «хрущевка», не важно, вариантов для «модернизации» и обновления всего два.
Максимальные результаты даёт перепланировка.

Но многих такая перспектива не радует и остаётся единственный вариант обустроить хрущевку с комфортом – используя дизайнерские хитрости, приёмы эргономики и организации функционального пространства. Вас приятно удивит результат, когда хрущевка преобразиться, а интерьер останется в прежних стенах.
Без профессионального дизайнера, знаний и опыта достичь такого результата сложно. Но успех гарантирован, если вы воспользуетесь нашими советами. Они пригодятся и для тех, кто решил изменить интерьер двухкомнатной хрущевки, и для владельцев однокомнатных, и трехкомнатных малогабариток.
Маленькая кухня в хрущевке. Используйте приёмы визуального расширения пространства. Например, почему бы вам не сделать стеклянный потолок или заказать кухонную мебель со стеклянными дверцами?

Как изменить гостиную в Хрущевке
- Используйте не больше одного крупного предмета.
- Массивные шкафы и стенки нужно убрать. Гораздо эффективнее поставить один шкаф-купе с зеркальными дверями, в котором найдётся место не только для одежды.
- В небольшой гостиной не место серванту, заставленному посудой.
- Долой ковры со стен, фотографии и картины. Интерьер гостиной, в хрущевке страдает от избытка декора, который «утяжеляет» пространство и уменьшает его визуально.
Правильное освещение. Попробуйте избавиться от люстры или хотя бы установите плоскую модель. Используйте настенные и встроенные в мебель светильники: в «рабочей» зоне – одни, над столом – другие.

Как увеличить спальню
- Сделайте подиум. На нём кровать будет смотреться очень эффектно и уютно, а под возвышением вы сможете оборудовать выдвижные шкафчики для хранения вещей.
- Используйте свободные углы. Удобная навесная полка или этажерка в углу сделает интерьер спальни в хрущевке более функциональным, и не украдёт активно использующуюся часть площади.
- Интерьер детской спальни для двух разнополых детей проще всего оборудовать двухъярусной кроватью, но с точки зрения психоэмоционального комфорта детей – лучше разделить пространство, сохранив общий объём помещения. Для этого подойдёт ширма, раздвижная перегородка или большой аквариум.
Дизайн ванной в хрущевке кардинально изменить сложно и требует тщательного продумывания эргономики маленького пространства, подбора мебели, сантехнического оборудования консольного типа и прочих хитростей. Снос перегородок, увы, неуместен.

Ванная комната в хрущевке будет выглядеть более просторной, если использовать светлую плитку, светлую мебель с зеркалами, консольную сантехнику.
Большие возможности для малогабаритной квартиры. Дизайн хрущевки — сколько же нелестных отзывов и сколько насмешек он вызывает! И действительно – есть за что. Малогабаритная квартира – это и низкие потолки в 2,5 метра, и пресловутый совмещённый санузел, узкая прихожая и смежные маленькие комнаты. Куда ни глянь – дизайн далёк от идеалов комфорта и уюта.
Все можно изменить до неузнаваемости и даже в какой-то степени решить проблему дефицита свободного пространства.
С перепланировкой или без?
Перепланировка «хрущевки» даёт гораздо больше возможностей для того, чтобы создать гармоничный во всех смыслах дизайн интерьера. Общая площадь помещения при сносе увеличивается на несколько квадратных метров и позволяет дизайнерской фантазии воплотить в реальность желания хозяев, которые уже перестали надеяться, что в интерьере двухкомнатной хрущевки или дизайне 1 комнатной квартиры может поселиться настоящий комфорт.
По этой причине мы советуем заказчикам решиться на перепланировку.

Хорошим решением может стать установка компактной душевой кабины вместо ванной. Освободившееся пространство занять под узкую стиральную машину, а в углу повесить шкаф-пенал.
Перепланировка однокомнатной хрущевки. Популярная кухня гостиная в дизайне интерьера с изначальной хрущевской планировкой невозможна. Но стоит снести одну стену и вопрос с маленькой кухней в хрущевке сразу решается.
А с одновременным сносом стены между прихожей и комнатой дизайн коридора становится началом одного из самых интересных интерьеров современности – квартир-студий.
Если вы захотите воплотить подобную идею в жизнь, будьте уверены – ваши гости удивятся тому, что перепланировка однокомнатной хрущевки может быть столь практичной.
Для тех, кто не готов к сносу перегородок между кухней и комнатой, а также между прихожей и комнатой, можно рекомендовать другой вариант.
Вход в комнату оборудовать напротив входа в квартиру, а прежнюю дверь заложить. Дизайн прихожей в хрущевке от этого сильно не изменится, но в комнате образуется пространство, где можно устроить небольшую гардеробную и установить угловой шкаф-купе.

Дизайн двухкомнатной хрущевки
Приоритеты те же – высвободить максимум пространства, создать гармонию уюта и комфорта. Дизайн двухкомнатной хрущевки с перепланировкой позволяет решить проблему смежных помещений. Возможен и противоположный вариант – временное объединение комнат.
Для этого нужно установить раздвижную перегородку, тем самым создать и интересный дизайн спальни, и сделать современный интерьер такой спальни продолжением первой комнаты в дневное время.
Одним словом, дизайн хрущевки может быть удобным, эстетичным и функциональным. И для его создания есть масса решений и идей. Мы уверены, что и ваша двухкомнатная хрущевка станет уютной и комфортной, даже без капитального ремонта.

Маленькая «хрущевка» — как визуально расширить пространство? Советы и хитрости
Есть проверенные дизайнерские приемы, и я ими с Вами с радостью поделюсь на примере комнаты для молодого человека площадью 9 квадратных метров.
Молодой человек, 26-и лет попросил помочь ему с его маленькой комнатой т.к уже голову сломал, не зная что с ней делать и как оборудовать ее, чтобы она служила ему и гостиной, и спальней и кабинетом.
- Если комната маленькая, это не значит что ее надо красить в скромный бежевый цвет, не бойтесь смелый цветов и даже ТЁМНЫХ — у них есть преимущества — эффект глубины и насыщенности. Ваша комната от этого только выиграет!
- Из низкого потолка в хрущевке можно создать полную иллюзию бесконечности — используйте глянцевый натяжной потолок с точечными светильниками. Есть еще способ как например, соорудить конструкцию из гипсокартона и окрасить ее в более темный цвет, нежели весь остальной потолок — от этого комната увеличивается ввысь!
- И наконец, можно использовать самое экстремальное, но беспроигрышное решение — ”одеть” потолок в «хрущевке» в зеркала!
- Освещение тоже играет большую роль. Центральная потолочная люстра не нужна. Освещение должно быть локальным, светильники верхнего света плоскими, максимально приближенными к потолку.
- Увеличить комнату в хрущевке за счет пола можно при помощи продольного направления половиц, на кухне например сыграет существенную роль светлая глянцевая плитка.
- Не стремитесь выделить мебель из общего интерьера, она должна сливаться со стенами и шторами. Что касается расположения, конечно же только вдоль стен или по углам!
- В дизайне интерьера однокомнатной квартиры большое значение имеет мебель. Она должна быть максимально функциональной. Например, вместо обычной кровати можно приобрести диван-кровать: днем он складывается, превращаясь в диван, а вечером становится полноценным спальным местом.

Лучше всего выбирать ту модель, которая дополнительно оснащена отделениями для хранения белья, в таком случае можно сэкономить место в шкафу.
- Украсив окно шторами подходящего цвета, вы зрительно сделаете комнату шире или длиннее. Как этого добиться? Все очень просто. В дизайне интерьера квартир есть такое понятие как «игра цвета». Так, в маленькой квартире лучше выбирать шторы и гардины светлых, теплых оттенков.
- Ни в коем случае не покупайте громоздкие ламбрекены и римские шторы. Ткани должны быть воздушными, летящими и невесомыми. Если вы декорируете окно на кухне, можно вообще отказаться от занавесок, оставив лишь тонкие шторы или жалюзи.
- Зрительно увеличить пространство можно, выбрав длинные шторы, которые ниспадают мягкими волнами и аккуратно ложатся на пол. Такой вид драпировки сделает помещение визуально длиннее, что прекрасно подойдет для квадратной и маленькой комнаты.

Расширяем пространство в Однокомнатной квартире
Современные реалии таковы, что однокомнатная квартира в «хрущевке» на сегодняшний день является наиболее распространенным видом жилья. При этом очень редко в такой «малогабаритке» проживает один-два человека.
Со временем семья увеличивается, и в результате в однокомнатном жилище вынуждены находиться трое, а то и пятеро человек.
Объединив туалет с ванной в «хрущевке», можно выиграть бесценные пару метров.
Дизайн однокомнатных хрущевок – довольно сложный вопрос даже для специалиста с опытом работы. Ведь, обращаясь к профессионалу, заказчики, порой, хотят невозможного. Они не только мечтают создать в единственном жилом помещении уголок для каждого члена семьи, но и увеличить метраж.
Но, к сожалению, последнее невозможно, и приходится архитектору и дизайнеру изворачиваться и находить оптимальные пути решения.
Жертвы здесь уместны. В дизайне интерьера однокомнатной квартиры, чаще всего приходится жертвовать кухней. Несмотря на и без того маленький метраж уголка для приготовления пищи, придется уменьшить его еще процентов на 30%, таким образом, освободив дополнительное пространство для создания еще одной жилой комнаты, пусть и небольшой.
Увеличить метраж в одной комнате за счет другой можно также, если в малогабаритной квартире имеется раздельный санузел. Таким образом, объединив туалет с ванной в «хрущевке», можно выиграть бесценные пару метров. А добавив сюда же еще немного площади с прихожей, появится место для установки полноценной ванны, стиральной машины и корзины для белья.

Такой санузел будет выглядеть куда уютней, нежели пенал — туалет и крохотная ванная. Возводить новые перегородки можно, используя узкие (7см.) газосиликатные блоки. Их вес меньше кирпичных, а их возведение требует куда меньше времени.
Найти место каждому? Возможно! Учитывая, что жилая комната в «хрущевке» всего одна, а функций она выполняет множество, очень важно правильно разделить пространство на функциональные зоны, как минимум на зону отдыха и рабочую зону.
Для этого способов существует масса: ширмы, шторы, подиум, комбинирование материалов и освещения. В однокомнатной Хрущевке лучше всего выбрать точечное освещение вместо одного центрального либо скомбинировать оба типа так, чтобы в центре висела общая люстра, а в каждой зоне был установлен индивидуальный светильник.
В дизайне интерьера однокомнатной квартиры, особенно «хрущевки», необходимо следовать одному правилу: все должно быть обустроено в духе минимализма. Если это мебель, то строгая, лаконичная. Если это потолок – то никакой лепнины и многоуровневых конструкций.
Старайтесь сохранить свободным каждый лишний сантиметр. И тогда вы по-новому взгляните на свою квартиру.

Увеличиваем визуально пространство хрущевки шторами
В дизайне интерьера квартир окно играет огромную роль в формировании пространства. И если в больших по площади апартаментах проблем с благоустройством не отмечается, то в малогабаритной «хрущевке» хочется создать такую атмосферу, которая бы добавляла помещению уют и комфорт, и в то же время зрительно увеличивала метраж. Выбираем.
С помощью различных элементов декора можно придать даже маленьким помещениям большей выразительности и создать уютный уголок.
В последнее время в дизайне интерьера квартир большим успехом пользуются рулонные шторы. Это достаточно миниатюрные и стильные конструкции, которые не только добавят шарм вашему жилищу, но и не сделают оконный проем слишком громоздким и массивным.

Учитываем назначение помещений в малогабаритке
В зависимости от того, для какой комнаты предназначены те или иные гардины, зависит размер, цвет и фактура штор.
Например, маленькfz спальня в хрущевке лучше всего будет смотреться с легкими, но плотными шторами, которые не пропускают солнечный свет. Расцветку стоит выбирать чуть темней основного цвета обоев, ковра или мебели. В таком случае интерьер хрущевки будет выглядеть законченным и уютным.
На кухне стоит отдавать предпочтение шторам, которые доходят до подоконника.

Откажитесь в малогабаритной квартире от длинных гардин до пола – они не только выглядят не эстетично в местах приготовления пищи, но и делают помещение громоздким и тесным. Как альтернатива тканевым шторам пользуются популярностью жалюзи, роль-шторы, шторы-плиссе.
Главным преимуществом таких конструкций является легкость в уходе – достаточно протереть влажной губкой металлические ламели либо плотную ткань роль-шторы, и украшение для окна вновь выглядит как новое.
Маленькая гостиная в хрущевке не должна заставляться громоздкими конструкциями. Вместо римских штор с ламбрекенами лучше повесить полупрозрачный тюль, дополненный мерцающими легкими шторами.
Стоит конечно учитывать и стиль интерьера. Если это старая добрая классика, то украсить комнату в хрущевке можно шторами из благородных материалов (например, бархат). Но в таком случае большое внимание стоит уделять цветовой гамме – она должна вписываться в общую концепцию квартиры.
Увеличение пространства в хрущевке – задача не из простых. Но грамотно подойдя к этому вопросу, вы сможете обставить свой уголок по всем правилам дизайна интерьера.
Фотографии квартир Хрущевок:
schoolremont.ru
Дизайн однокомнатной квартиры хрущевки: интерьер однушки-студии
Главный недостаток однокомнатных квартир – «хрущёвок» – это маленькие габариты всех помещений, неудобная планировка и низкие потолки. Часто к этому ещё присоединяется отсутствие балкона. О комфорте на такой жилплощади, предназначавшейся для одного человека, ранее не могло быть и речи. Но сегодня, благодаря инновационным отделочным материалам, даже дизайн интерьер такой квартиры можно преобразить, сделав её уютным гнёздышком.
О перепланировке маленькой квартиры
Главная задача при обустройстве «однушки» хрущёвского типа – расширить пространство. Стены, конечно, раздвинуть невозможно, однако вполне реально увеличить площадь хотя бы визуально. Дизайнер квартир обычно использует несколько приёмов, помогающих достичь этой цели:
- совмещение и зонирование комнат;
- светлая отделка;
- многофункциональная компактная мебель;
- правильное освещение;
- минимальное количество атрибутов мебели и аксессуаров.
Поводом для перепланировки может являться составленный дизайн-проект квартиры.
Многие владельцы решаются на радикальную перепланировку со сносом стен. Но для реализации подобного проекта потребуется сбор множества документов, согласований и разрешений на осуществление данных действий. Поэтому мы сегодня остановимся на дизайне однокомнатной «хрущёвки» без сноса несущих стен. Единственное, что можно сделать без согласования органов – совместить ванную и санузел. В результате мы получим более просторное помещение, которое можно оформить со вкусом.

Особенности зонирования однушки
Для зонирования в таком маленьком помещении лучше использовать не перегородки, а мебель. Долой предрассудки о том, что стеллажи, диваны и шкафы должны стоять только вдоль стен. Какие зоны вы получите, разделив участки комнаты мебелью, зависит от индивидуальных желаний и целей. Это могут быть зоны гостиной и спальни или детской, или рабочего кабинета. Если вы хотите отделить кухню от гостиной, то границей может служить оригинальная барная стойка.

Другой способ разграничения спальни – шторы и занавески. Чтобы комната не выглядела как в старые добрые времена, следует подобрать интересные шторы, например, в восточном стиле. За такой перегородкой обычно размещают спальное место. А вот для разделения прихожей и гостиной очень подойдут бамбуковые занавески.
Если правильно выбрать обои в хрущевку в зал, то можно зрительно увеличить комнату, либо разделить ее на зоны.
В зонировании активное участие принимает цвет отделки. Это могут быть комбинированные обои разных оттенков, но из одного цветового спектра. Другое решение, очень модное и современное, – обыгрывание разных зон контрастными цветами. Но это больше подойдёт для квартиры-студии.
Трудно в “хрущевке” разместиться большой семье. Но если продумать дизайн однокомнатной квартиры с детьми и учесть все особенности, тогда можно разместиться всем.
Идеи для интерьера
Современные интерьеры дизайнеры обязательно создают в едином стиле. Наилучшее стилевое решение для обустройства хрущёвки – минимализм, который освобождает небольшую площадь от всего лишнего, оставляя только самое необходимо и функциональное.

Неплохим вариантом для хрущёвки служит воплощение классического интерьера с элементами современных стилей. Очень уютное гнёздышко можно создать в деревенском стиле, наполнив интерьер натуральными материалами (дерево, глина, лён). Интерьер комнаты для молодого человека можно сделать в стиле ультрасовременного хай-тека с использование хромированных поверхностей. Если органично смешать несколько стилей, может получиться уникальный интерьер, однако в этом случае лучше проконсультироваться с дизайнерами.

Чтобы типичную квартиру сделать красивой, необходимо подойти к её обустройству не только с точки зрения дизайнера, но использовать некоторые психологические приёмы. Представьте себя на месте гостя. Первое, на что вы обратите внимание, – это яркие детали. Поэтому самый удачный ход – это светлая отделка и несколько ярких пятен. Поэтому дизайн прихожей в хрущевке – это важно, ведь прихожая – “лицо” всей квартитры. Отличная идея для маленьких хрущёвок – использовать в интерьере блестящие и отражающие поверхности. Это могут быть обои с шелкографией, глянцевые натяжные потолки, паркетное покрытие с лаковой поверхностью или наливные полы.
Если в хрущёвке есть балкон, то его нужно правильно использовать. Лучше балкон не просто застеклить, но создать там термокамеру, в которой будут храниться овощи и фрукты.
Санузел лучше совместить с ванной, а вместо самой ванной целесообразнее установить душкабину. В результате появится свободное место, где можно разместить стиральную машину. Сантехника должна быть компактной, в идеале – навесной. Используя эти нехитрые приёмы, вы получите более просторное помещение, в котором можно будет хоть как-то передвигаться.
Повсюду: в коридоре, кухне, ванной – можно активно использовать антресоли, они послужат хорошими системами хранения вещей. Их лучше маскировать под цвет потолка или стен. Тогда в основной комнате не понадобится много мебели, а пространство за счёт этого расширится.
Кухня в хрущёвке очень тесная. Если вы не желаете объединять её с другими помещениями, то придётся разместить в ней минимум атрибутов, причём компактного формата.
В маленькой «хрущёвской» прихожей используйте только светлые тона для отделки. Из мебели лучше предпочесть небольшой шкаф-купе, заказанный под индивидуальные размеры, либо вовсе ограничиться полками. Зеркало, пуфик и точечные светильники создадут дополнительный уют в прихожей.

Цветовая гамма
Если основная комната – светлая и тёплая, то для отделки подойдут как тёплые, так и холодные оттенки. Ну а если естественного света очень мало, то выбирайте светлые тёплые тона для поверхностей. Любителям тёмной гаммы можно порекомендовать дополнительное освещение комнаты или сочетание тёмной мебели и светлой отделки.
Подбираем мебель
Как уже говорилось выше, мебели в тесной «однушке» не должно быть много. Громоздкие «стенки» и шифоньеры явно сделаны не для хрущёвок. Следует подбирать многофункциональные атрибуты мебели, к примеру, диван-трансформер или шкаф, превращающийся в кровать. Стол-тумба, кресло-кровать тоже здесь будут весьма уместны.

Для хранения вещей лучше заказать шкаф–купе с зеркалами, за счёт которых пространство зрительно увеличится. При этом глубину полок стоит уменьшить хотя бы на 10 см. Такой приём тоже поможет расширить площадь. А это очень важно в условиях миниатюрной хрущёвки, где каждый сантиметр на счету.
Хорошее современное решение – встроенная и совмещённая мебель. Это может быть кровать, поднимающаяся на второй ярус, под ней же обустраивается рабочее место. Ещё одна хитрость – кровать, выдвигающаяся из подиума, на котором обустроен стол с компьютером.
Вещи, которые используются изредка, поднимите на антресоли. Современный телевизор с жидкокристаллическим экраном не займёт много места, если вы его установите на стене. На кухне понадобится стол, и лучше, чтобы он был раскладным.

Освещение
Сделать квартиру уютной поможет грамотно установленное освещение. Используйте основные и дополнительные источники света для зонального деления помещений. Также понадобится встроенная подсветка, например, у зеркала в прихожей. Забудьте о центральной люстре: это уже не в тренде, тем более, если вы разграничиваете пространство.
Точечное освещение, настенные и потолочные источники света – вот что поможет организовать стильное пространство однокомнатной хрущёвки.
Декорирование
Умеренное количество декоративных элементов – одно из условий дизайна малогабаритных квартир.
Дизайнеры настоятельно рекомендуют отказаться от приобретения сувенирных статуэток. Лучше создайте украшение для интерьера своими руками. Тогда взоры гостей сразу обратятся к этим деталям, а недостаток места может остаться незамеченным.
Лёгкие, светлые шторы на окнах, минимум аксессуаров, картина или фото в рамках на одной из стен, зеркало в прихожей, два-три вазона с цветами – вот, пожалуй, и всё, что не будет загромождать пространство квартиры.

Ламинат Pergo.Как клеить бесшовную потолочную плитку узнаете в этом материале.
Ламинат укладка самостоятельно: https://trendsdesign.ru/materialy/napolnye-pokrytiya/laminat/kak-pravilno-ulozhit-laminat.html
Дизайн-проект однокомнатных хрущевок: видео
Выводы
Итак, маленькая однокомнатная хрущёвка – не повод грустить и отчаиваться. Лучше продумать дизайн квартиры, учитывая те идеи и рекомендации, которые представлены в данной статье. Надеемся, что эти советы помогут вам обустроить стильное и уютное жилище, в которое всегда хочется вернуться.
Как правильно выбрать обои читайте здесь.
trendsdesign.ru
Фото дизайн интерьера однокомнатной хрущевки 31 кв. м.
Если вы проживаете в однокомнатной квартире «хрущевке», и вам надоел ваш старый интерьер, то спешим вам показать фото дизайн интерьера однокомнатной хрущевки от Rogov Studio.
Оформление прихожей
В нашей однокомнатной хрущевке 31 кв. м. узкий коридор кажется шире за счет встроенного шкафа купе с зеркальной поверхностью в полный рост. Эффект усиливается светлыми тонами в отделке пола и потолка.

Дизайн прихожей в однокомнатной хрущевке. Фото 1
Главное правило в дизайне маленьких прихожих, это использование большого количества зеркал

Зеркальный шкаф в прихожей хрущевки 31 кв. м. Фото 2
Отделка и оформление кухни
Дизайн кухни в однокомнатной хрущевке играет решающую роль. Сочный оранжевый цвет создает приподнятое настроение, обилие шкафов и ниш для хранения позволяет удобно разместить все необходимое: от сковород и кухонного комбайна до столовых приборов и стаканов.

Дизайн оранжевой маленькой кухни в хрущевке. Фото 3
Точечное освещение на маленькой кухне хрущевки, дополненное круглым абажуром в тон ярких фасадов, полностью исключает наличие темных и неосвещенных зон.

Угловая кухня в дизайне хрущевки. Фото 4
Дизайн кухни предусматривает, что оранжевый цвет органично приглушают светлые стены, потолок и мебель.

Дизайн кухни для хрущевки. Фото 5
Небольшой круглый стол занимает минимальное пространство. За ним могут комфортно разместиться 3 человека.

Малогабаритные кухни, дизайн в хрущевке. Фото 6
Стилизованный камин на кухне создает уютную атмосферу, располагающую к общению.

Декорирование стен на кухне в хрущевке. Фото 7
Картины в квадратных рамках над обеденной зоной завершают дизайн кухни в однокомнатной хрущевке.
Дизайн гостиной в однокомнатной хрущевке
В интерьере гостиной комнаты преобладают четкие геометрические формы, призванные зонировать пространство. Игра контрастов белого и сапфирного синего подчеркивает строгость линий.

Дизайн гостиной в хрущевке. Спортивная тематика. Фото 8
Зона отдыха находится у окна. Мягкий диван с обилием подушек и удобное кресло, расположенные напротив телевизионной панели, способствуют расслабленному времяпрепровождению. Изогнутая лампа на высокой ножке создает дополнительное освещение.

Синий и белый цвет в дизайне гостиной в хрущевке. Фото 9
Декоративные ниши со сквозными полками у входа делают пространство легким. Гостиная в однокомнатной хрущевке кажется больше за счет использования встроенного шкафа с зеркальной поверхностью, украшенной рисунком.

Белый диван в дизайне гостиной хрущевки. Фото 10
Стена за диваном декорирована модульной картиной на морскую тематику, которая также нашла отражение в отделке диванных подушек.

Дизайн однокомнатной хрущевки. Фото комнаты после ремонта

Дизайн однокомнатной хрущевки 31 кв. м. изначально предполагал светлый пол и стены, которые создают воздушность, наполняя гостиную воздухом и светом.
Оформление и отделка ванной комнаты
Дизайн ванной комнаты в хрущевке соответствует тематике всей квартиры. Угловая ванна оригинальной формы не занимает много места. Тумба под раковиной плавно переходит в необычную полку, предназначенную для хранения полотенец и банных мелочей. Большое зеркало украшает мозаичная рамка. Мозаика также нашла применение в декоре внешних стенок чаши ванной и полки под раковиной.

Дизайн ванной комнаты в хрущевке. Фото 13
Любую квартиру в независимости от ее размеров можно превратить в дизайнерский шедевр, сделав пространство эргономичным, с четким разделение функциональных зон, в которых достаточно места для всех обитателей.

Дизайн однокомнатной хрущевки. Фото ванной комнаты

Потолок в ванной комнате. Потолочный светильник. Фото 15

Совмещенный санузел в хрущевке. Фото 16

Дизайн однокомнатной хрущевки. Совмещенный санузел. Фото 17

Дизайн однокомнатной хрущевки. Совмещенный санузел. Фото 18
postroiv.ru
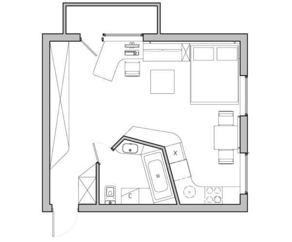
Отличнейший дизайн для однокомнатной хрущевки / Домоседы
Однокомнатная квартира в хрущевке всегда кажется тесной и вызывает желание как-то расширить пространство. Предлагаем вам хороший пример дизайна однокомнатной квартиры с удобной кухней, достаточно большим санузлом, нормальным коридором, маленькой спаленкой, кабинетом и местом для отдыха.Не верите, что все это однокомнатная хрущевка? Смотрите подробный дизайн в фото и порадуйтесь за хозяев!
Основные цвета в этой квартире бежевый и цвет вишни. Внутренние стены из пеноблоков (не несущие) были демонтированы и получилась однокомнатная квартира открытой планировки. Небольшая кухня кажется более свободной за счет того, что обеденная зона частично перенесена в комнату.
В комнате рядом с обеденной зоной, у окна расположился рабочий стол, на соседней стене с которым смонтирован вместительный стеллаж.

Следующая зона в нашей комнате — зона отдыха. Большой раскладной диван для гостей дополняет телевизор на противоположной стене. Рядом с телевизором вход в санузел. Каждая зона в квартире имеет свое удобное освещение.

Спальное место в этой маленькой квартире расположено за перегородкой, отделяющей коридор от комнаты. Со стороны коридора у перегородки стоит удобная скамейка и открытые крючки для одежды. Со стороны комнаты за перегородкой находится кровать на деревянном подиуме, в который можно складывать внесезонные постельные принадлежности.

Рядом с кроватью находится ниша с подсветкой, которая фактически является дополнительной звукоизоляцией между шахтой лифта и местом для сна в квартире.

Неожиданно просторный коридор для этой маленькой квартиры зрительно увеличивает вместительный шкаф-купе с зеркальными дверцами.

Удобный маленький санузел повторяет основную цветовую гаммы всей квартиры.

Автор дизайна этой квартиры — Александра Минх, которая помогла нам увидеть большие возможности маленького пространства однокомнатной квартиры в хрущевке.

Основная цель перепланировки маленькой квартиры — это сделать ее удобной и практичной для хозяев, чтобы в квартире нашлось место и для работы, и для сна, и для приема гостей.
domosedy.com
Дизайн хрущевки 1 комната, множественные советы по реализации идей
Счастливыми владельцами однокомнатной квартиры являются многие жители постсоветского пространства. К сожалению, при постройке, так называемых хрущевок, комфортное размещение в них жильцов мало кого волновало. Основная задача такого жилья состояла в скорейшем решении квартирного вопроса и расселении советских граждан из общежитий в собственное жилье, площадью от 31 до 35 кв м. Современные жильцы предъявляют куда больше требований, желая, чтобы дизайн хрущевки 1 комната был комфортным, функциональным. Имеющихся 31, 32 либо 35 кв м большим семьям может быть мало, единственный выход – это переделка, перепланировка, превращение угловой квартиры в студию, создание шикарных апартаментов при помощи зонирования.
Особенности оформления
Поскольку размер квартиры в хрущевке совсем небольшой, потолки низкие, санузел раздельный, а кухонное пространство сокращено до пределов, то первое, о чем следует задуматься, это о том, как будет осуществлена переделка однушки. Необходимо составить проект предстоящих изменений, пригласить опытного дизайнера. Чтобы лучше представлять себе масштаб работ, следует освободить квартиру ото всех громоздких вещей, после чего взять чистый лист бумаги, представить на нем, как бы она выглядела без перегородок, огромных шкафов, указать площадь и те самые 32-35 кв м.
Специалист подскажет, что нужно отставить, а от чего отказаться. Нужно быть готовыми к тому, что выбрасывать придется очень многое, а ремонт изменит квартиру до неузнаваемости. Но сделано это будет в лучшую сторону, отражающую вкусы и стиль владельцев.
При желании спроектировать дизайн однокомнатной хрущевки можно самостоятельно. Разработать собственный дизайн-проект совсем несложно. Вот некоторые правила удачной планировки маленьких пространств:
- никаких темных тонов, обстановка должна быть светлой;
- от габаритных, тяжелых вещей лучше избавиться, предпочтение следует отдать мебели средних либо небольших размеров;
- избегайте резких контрастов;
- расширить квартиру можно при помощи некоторого количества ниш, выступающих заменой обычным полочкам;
- зонирование — основной инструмент дизайнера, с его помощью площадь квартиры увеличивается вдвое.
Планируя ремонт стоит заблаговременно определиться с тем, оставлять ли перегородки между помещениями или же убрать их. В последнем случае, необходимо получить специальное разрешение на проект. Если сносить несущие стены не планируется, ремонт можно начинать без согласования с органами ЖКХ, не предоставляя им отдельный проект, даже не сообщая об изменениях.



Зонирование
В маленьких квартирах непросто выделить место для спальни и гостиной, потому раньше при постройке подобных помещений приходилось отказываться от специальных мест для отдыха. Новые технологии позволяют этого не делать, при этом стиль квартиры не нарушается. При помощи элементарного зонирования можно на одной площади разместить несколько интерьерных зон, выделить место для определенных зон:
- спальня — в зоне, где планируется спальня, должен быть диван, шкаф для одежды. Спальня может разместиться на 7-8 кв м;
- гостиная — в центре гостиной рекомендуется поставить журнальный стол, несколько небольших кресел. На стену напротив можно повесить телевизор, оборудовав его приспособлениями для поворота в различные стороны. При этом его будет удобно смотреть не только сидя в кухне, но и удобно устроившись на диване. Гостиная в обязательном порядке включается в дизайнерский проект, для нее достаточно 6-7 кв м;
- рабочий кабинет — если место позволяет, то можно выделить площадь под рабочую зону, поместив сюда компьютерный стол, компьютер, кресло,шкаф для книг. Для этого потребуется около 1,5 кв м;
- детская — если планируется проживание с одним ребенком либо несколькими детьми, то при помощи зонирования однушка делится на две маленькие комнаты, в одной из которых можно обустроить детскую. Сделать это можно при помощи большого книжного либо вещевого шкафа, устанавливатьспециальнуюперегородкунежелательно, поскольку это отнимет лишние сантиметры свободного пространства, может не вписаться в интерьер квартиры, потребует составить специальный проект, замедлит ремонт. Для детской потребуется до 10 кв м;
- кухня — зона, где будет размещена кухня, рекомендуется выделить при помощи обоев другого цвета. При этом необходимо следить затем, чтобы интерьер не был чересчур ярким, что приведет к необходимости переделывать ремонт. Кухня занимает от 5 до 6 кв м.
Убрав стену между комнатой и кухней, можно освободить немало пространства, разделить его на равные зоны и визуально расширить при помощи световых эффектов на потолке и стенах, а также особой окраски потолка и пола. Интерьер кухни может быть подобран любой, выбрать самый удачный помогут фото на дизайнерских сайтах.
Санузел в простой однокомнатной хрущевке обычно раздельный и очень маленький, что лишает возможности размещения в ванной комнате стиральной машинки и какой-либо мебели. Благодаря зонированию, такая возможность появляется. Производя ремонт, сносят стену между ванной и туалетом, а вместо ванны и раковины устанавливают душевую кабинку. Интерьер комнаты меняется, площадь расширяется, она становится просторней и более соответствует современным представлениям о комфорте. Дальше можно увидеть фото внесенных изменений, а также готовый их проект. Расширить квартиру можно также и при помощи балкона.
Ремонт следует начинать с балкона. Утеплив балкон современными материалами, можно не беспокоиться о том, что зимой он станет источником холодного воздуха. Защитная перегородка, дверь и прочее при этом не потребуются, потому их можно убрать и разместить на балконе комнату отдыха, личный кабинет, или даже детскую. Выбрать подходящий интерьер балкона также можно по фото.
Обычной прихожей в переделанной однокомнатной квартире может и не быть. Пространство, занимаемое обувью можно сократить, разместив ее в специальной тумбочке. Верхнюю одежду лучше сразу прятать в шкафу, а сумки в специальных нишах по обеим сторонам от двери. Наличие ниш внесет разнообразие в интерьер квартиры, позволит по максимуму использовать имеющееся пространство. Подобрать форму и глубину ниши можно руководствуясь соответствующими фото уже готового интерьера.



Оформление поверхностей
Сделать из маленькой комнаты большую при помощи одних лишь правильно подобранных обоев и деления пространства на зоны практически невозможно. Важное место в дизайне хрущевок занимает обустройство пола и потолка квартиры.
Потолок
Размер и высота потолка крайне важны. Потолок обязательно должен быть белым, допускается зеркальный вариант, без каких-либо рисунков и завитков. Белый натяжной потолок — лучшее решение для желающих визуально расширить имеющееся небольшое пространство. К тому же светлая отделка потолка способна зрительно «увеличить» его высоту, создав ощущение простора. Визуальному увеличению пространства квартиры также способствуют натяжные глянцевые потолки, которые могут комбинироваться с гипсокартонными конструкциями.
Квартиры в хрущевке не могут похвастаться большой площадью, а потолки в них чаще всего невысокие. Именно поэтому следует при ремонте использовать некоторые хитрости, которые помогут визуально приподнять потолочную поверхность:
- откажитесь от многоуровневых конструкций, рисунков, а также декоративной отделки, которые визуально снизят и без того невысокие потолки;
- если для оформления стен используются обои, то клеить их стоит до самого потолка, так он будет казаться выше;
- визуально увеличить высоту потолка поможет дополнительная подсветка по периметру помещения;
- если для оформления выбрана натяжная конструкция, то лучше, если она будет глянцевой;
- часть потолка можно сделать зеркальной;
- цвет потолка должен быть на несколько тонов светлее, чем цвет стен.




Пол
В качестве покрытия для пола используется линолеум, паркет либо ламинат. Пол должен делаться из материала одного цвета, фактуры. Если дизайнерское решение позволяет, пол квартиры устилают ковровым покрытием. Напольные материалы можно использовать для зонирования пространства. Для этого случая неплохо сочетаются ламинат и керамическая плитка, ковролин и натуральное дерево. Но в этом случае стоит помнить, что использование разных материалов для оформления пола скрадывает пространство, а одинаковое напольное покрытие визуально увеличивает площадь.
На выбор отделочного материала влияет то, для какой из зон она он будет использоваться. К примеру, для оформления ванной комнаты подойдет керамическая плитка, для прихожей квартиры – ламинат или линолеум, а для детской лучше выбирать мягкий ковролин.




Стены
При изменении интерьера особое значение придается стенам. Стены оклеивают обоями либо красят, реже оббивают тканью. Если студия слишком маленькая, то лучше выбрать белые обои с различными рельефными узорами либо ограничиться побелкой стен. Вешать на стены картины не рекомендуется, лучше разместить на них фото либо несколько больших зеркал. Если имеется потребность в полках для сувениров, книг, прочей мелочи, то рекомендуется сделать в стенах специальные ниши, осветить их при помощи гирлянд, небольших светильников.
Для отделки стен следует выбирать материалы в светлых тонах, которые можно комбинировать с вариантами, с яркими вертикальными полосами или вертикальными элементами. Таким образом также можно визуально расширить пространство небольшой квартиры. От слишком крупных узоров на обоях лучше отказаться, так как большие объекты в небольшом по площади помещении лишь уменьшит его.
Чтобы визуально расширить небольшое пространство, можно некоторые стены оформить с помощью зеркал.
Освещение
Освещение занимает ведущее место, составляя проект обустройства хрущевки, именно источниками света стоит заняться в первую очередь. Света должно быть не просто достаточно, а действительно много, чтобы создать в квартире уют и одновременно с этим визуально его увеличить.
При помощи приглушенного света можно затенить те углы квартиры, которые лучше не показывать постороннему взору, и выделить то, что вносит определенную гармонию в интерьер. Рекомендуется в большом количестве размещать светильники как на стенах, так и на полу, потолке, о чем уже шла речь выше. Для потолочной поверхности квартиры стоит использовать светодиодную подсветку, с помощью которой можно также сделать акцент на важных зонах помещения.
Зачастую в однокомнатной хрущевке всего два окна, через которые в помещение проникает естественное освещение. Если оконные проемы слишком узкие, то есть смысл их расширить, чтобы в квартиру проникало больше света.

Мебель
Маленькая квартира студия, становится еще меньше, если в ней будут находиться старые советские платяные шкафы, большие кресла, громоздкие диваны и кровати. Не стоит загромождать пространство мебелью, лучше освободите его, создав собственный стиль. Вместо обычного шкафа установите купе, вместо кровати, или дивана-книжки — софу. Если есть такая возможность, то от шкафа и вовсе лучше отказаться, оборудовав его в небольшой кладовой.
Прихожую можно заменить вешалкой для одежды, шкафы на кухне — нишами, большому столу в гостиной не место, если планируется приглашать гостей, то лучше приобрести стол-книжку, она хорошо впишется в общий стиль и не будет никому мешать. Для увеличения кухонного пространства рекомендуется приобрести для квартиры встроенную мебель.
Для других зон квартиры можно заказать специальную мебель трансформер или встраиваемые варианты. Это очень удобно и позволяет не задумываться о том, как пройти между шкафом и кроватью, чтобы не удариться локтем о спинку, или приоткрытую дверь. К сожалению, стоимость встраиваемой и легко убираемой мебели в несколько раз превышает цену на обычные стулья и диваны, потому данное дизайнерское решение подходит далеко не всем.
Мебель не должна контрастировать с окружающей обстановкой, а должна быть подобрана в одном цветовом тоне. Чем меньше мебели, тем лучше, не стоит располагать в одной комнате несколько диванов, лучше ограничиться одним, а для гостей, или планирующих часто приезжать родственников, купить надувной матрац.
Для того чтобы проще и быстрее зонировать пространство квартиры, превратить ее в настоящий райский уголок, куда приятно возвращаться после рабочего дня, необходимо определить не только дизайн однокомнатной хрущевки, но и список предметов, без которых жизнь владельца квартиры просто невозможна. К таким предметам относятся:
- кровать или диван;
- несколько табуреток;
- обеденный и журнальный стол;
- компьютерный стол и сам компьютер;
- стиральная машинка;
- газовая плита;
- холодильник;
- несколько шкафчиков для кухни;
- шкаф для вещей;
- тумбочка для обуви;
- зеркало.
Все эти предметы обязательно должны быть в любой квартире, потому мечтая о том, как бы пристроить на площади в 30-35 кв метров оригинальное чучело павлина, не забудьте о том, что куда важнее оборудовать квартиру спальным местом и обеденным столом. А это невозможно без удачного зонирования.




Цветовые решения
Белый цвет является идеальным для оформления небольших квартир. Но это не значит, что все маленькие помещения должны быть идеально белыми. Для окраски комнаты можно использовать различные оттенки розового, голубого, зеленого, желтого и даже фиолетового. Каждая зона должна быть выделена отдельным цветом, иметь свой неповторимый стиль.
Зону для ночного сна и отдыха можно окрасить в желтый либо розовый цвет, поставить в это место мягкий диван и шкаф. Зону, которая будет выполнять функции гостиной, рекомендуется оклеить более темными либо, наоборот, более светлыми обоями другой фактуры, но такого же оттенка. Кухню лучше оклеивать моющимися обоями в полоску.
При покупке обоев следует избегать рисунков с большими цветами, а если таковые все же присутствуют, то более внимательно отнестись к подбираемому декору и аксессуарам.
Декор и аксессуары
Любители стиля хай-тек обычно не используют никаких аксессуаров и дополнительного декора для интерьера квартиры, что прекрасно видно на фото. Но это не значит, что так следует поступать всем. Естественно, что сувениры, оставшиеся со студенческих и школьных лет, лучше убрать подальше в коробку, но если у вас остался красивый бабушкин сервиз, имеются прекрасно сохранившиеся искусственные цветы, вазы, подсвечники, свечи, полотенца, украшенные замысловатым орнаментом, то их всегда можно использовать для декора кухонного пространства квартиры.
Спальню можно украсить несколькими фото в красивых рамках, а лучше отпечатанных на холсте. Также для декора спальни подойдут гипсовые ангелочки, красивые подушки и гармонично вписывающиеся в обстановку коврики. Фото можно разместить в гостиной и даже на кухне. Снимки должны быть качественными и навевать приятные воспоминания. Аксессуары, в том числе и фото, следует подбирать в соответствии с общим стилем квартиры и предпочтениями хозяев.





www.sedmoycanal.com







