Гардеробная 3 метра – прихожая 1, коридор 5 и 4, площадь в квартире метра, пример ремонта
прихожая 1, коридор 5 и 4, площадь в квартире метра, пример ремонта
Наличие гардеробной в доме или в квартире редких хозяев не обрадует. Но не всех есть возможность организации данной комнаты, поскольку сложно распорядиться сравнительно небольшой площадью, да так, чтобы всему хватило места. Но если затеян ремонт, и одной из его целей является оборудование гардеробной на имеющихся метрах, рассматриваются все варианты.
Небольшая прихожая 1х3 м: как обустроить
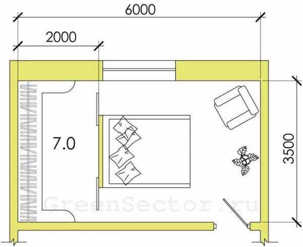
В маленькой прихожей устроить гардероб почти невозможно. Но если она хотя бы вытянутая, то придумать систему хранения все-таки можно. Прихожих, у которых длина всего 3 м очень много, а ширина в 1 м встретиться может разве что в очень редко квартире. Скорее всего, имеется в виду 1 м полезной площади, который остается уже в обставленной прихожей.
Итак, какой же может быть гардероб вытянутой и узкой прихожей? Предполагается длинный шкаф-купе с небольшой глубиной, максимум в 45 см.
Сегодня можно увидеть немало вариантов, где вместо дверей используется ширма, декоративная занавесь.
Такой пример может показаться неубедительным. Но только если не видеть конкретных ширм, очень красивых, современных, интересных.
Конечно, 3 метра это совсем немного, узость комнаты не дает возможность создать по-настоящему вместительную гардеробную. Приходится жертвовать другой комнатной мебелью – пуфами, банкетками, комодами. Но здесь вопрос выбора, если есть шанс перенести гардеробную зону в другую комнату, так и сделайте.
Как переоформить коридор 3,5 кв.м в гардеробную
Но, допустим, никаких возможностей сделать гардероб в другом месте, нет. Тогда придется грамотно распорядиться площадью прихожей. И здесь уже несколько вариантов.
Об особенностях оформления современных прихожих для узких коридоров расскажем в материале: https://homeli.ru/komnaty/prikhozhaya/sovremennye-prikhozhie-dlya-uzkikh-koridorov
Если коридор не узкий, вы можете поставить угловой шкаф:
- Он, несмотря на свою не самую привычную конфигурацию, довольно вместительный;
- Сэкономленное пространство позволит поставить еще мебели в коридор, или наоборот, ничего не ставить, делая комнату просто просторной;
- Угловой шкаф и скамья-диван – тот комплект, который очень удобен именно в прихожей, максимально практичен.
Но если коридор вытянут, то об угловом шкафе не приходится говорить. Тогда вариантом гардеробной будет длинный шкаф-купе, расположенный вдоль одной стены. Насколько позволяет длина стены, таким и делайте шкаф. Далее самым главным будет продумать грамотное наполнение шкафа, чтобы он действительно стал гардеробной.
Современная прихожая 3х4 квадрата: идеи для гардеробной
Но не всегда шкаф-купе – это единственно правильный вариант для прихожей. Так как встроенная мебель немобильна, не для всех такой образец интересен. Что ж, альтернатива, безусловно, есть.
Варианты гардеробных в прихожей:
- Гардеробная с распашными дверями – классическая модель. Украсит такую мебель интересная фурнитура. Обычно в таком шкафу делаю три отделения. В нижнем хранится обувь, среднее отделения является самым большим, в верхнем хранятся или головные уборы, или те вещи, которые используются редко.
- Гардеробная с открытыми полками. Интерьеры воздушного вида сегодня довольно популярны – без дверей и всяческих ограничений. Фасадные детали могут отсутствовать полностью и частично.
Угловой вариант тоже может быть – например, интересным будет радиусный шкаф, закругленный. Но есть и еще одна история, связанная с имеющейся в прихожей нише. Это очень удобный вариант для обустройства гардеробной.
Ниша и дизайн прихожей 3 кв.м
Хозяевам, в прихожей которых есть ниша, можно сказать, крупно повезло. Гардеробную можно расположить в ней, не нарушив целостности пространства. А Если окрасить боковую стеночку гардеробной в цвет стен прихожей комнаты, то вы сами создадите эффект ниши. Такой дизайнерский ход стал популярен в последние годы.
Другие варианты обустройства небольших гардеробных можно найти в нашем материале: https://homeli.ru/komnaty/prikhozhaya/garderobnye-komnaty-malenkogo-razmera
В нишу редко ставят стационарную мебель, чаще это встроенные шкафы.
Иногда в квартирах уже есть конструкции типа шкафа, которые изначально встроены в нишу. Но их наполнение может быть крайне неудобным. Если же вы не настроены переделывать этот исходный встроенный шкаф, вы можете хотя бы немного скорректировать его наполнение.
Помогут в этом системы хранения, вариантов которых очень много. И специальные плетеные корзины, и ящики, и навесные конструкции. Они позволяют более удобно расположить вещи, сделать наполнение практичным.
Уютная гардеробная комната: 3 кв.м, фото
Есть и другой вариант – вынести гардеробную зону из прихожей. Сделать это можно, если у вас, к примеру, большая спальня. Можно отделить гардеробную от основной части комнату, сделав специальную перегородку (например, гипсокартонную стену).
О том, как сделать гардеробную своими руками, читайте в материале: https://homeli.ru/komnaty/prikhozhaya/garderobnaya-svoimi-rukami. Выбор материалов и другие полезные советы.
Можно просто выделить условные три квадрата, отдав их под систему шкафов.
Но все-таки более четкое зонирование удобнее. Когда-то комнату делили на две части мебелью, но смотрится такое деление громоздким, редко оно удачное.
Потому деление ГКЛ стеной наиболее удобное:
- Получаются две комнаты в одной, гардеробная комната занимает меньшую часть, но в ней сосредоточено все, что должно быть в одном месте;
- Такое деление упорядочивает пространство;
- Наружную сторону гипсокартонной конструкции можно украсить декоративными нишами, подсветкой и т.д.
Иногда же три метра стены спальни (имеется в виду длина в 3 м) задействуют под оборудование длинного, широкого, вместительного шкафа-купе. Это тоже удобно, а если сделать зеркальные фасады, то пространство визуально увеличится.
Разработка дизайна гардеробной комнаты фото 3 кв.м (видео)
Иметь гардеробную в квартире в каком-то смысле роскошь. Но если она будет удобной, компактной, вместительной, позволить себе это могут многие. Пользуйтесь предложениями современных мастеров, грамотно распоряжайтесь конструктивными особенностями той же прихожей, и у вас все получится.
Правильных решений!
Примеры дизайна гардеробной комнаты 3 кв.м (фото в интерьере)
homeli.ru
варианты обустройства, проектирование и изготовление маленьких гардеробных 3 на 1 5 метра
- О нас
- О нас
- О нас в СМИ
- Производство
- Другое
- Шторы и ткани оптом
- Диваны и кресла
- Садовая мебель
- Натяжные потолки
- Ортопедические матрацы
- Оконные стеклопакеты
- Сотрудничество
- Портфолио дизайнеров
- Отзывы
- Хроника монтажей
- Каталог статей
- Наши преимущества
- Акции
- Акции
- Мебель
- Гардеробные
- Двери-купе
- Шкафы купе
- Прихожие
- Гостиные
- Библиотеки
- Кабинеты
- Спальни
- Классические двери купе и шкафы
- Коллекция VENICE
- Коллекция YVOIRE
- Коллекция VERSAILLES
- Коллекция AVIGNON
- Коллекция FLORENCE
- Коллекция VERONA
- Шкафы-купе «ALTA»
- Шкафы-купе с мягкой 3D экокожей «Luxor»
- Шкафы-купе с зеркалами и стеклами «Miracle»
- Шкафы-купе с экокожей «Leathery»
- Бюджетные шкафы
- Детская мебель
- Кинозалы
- Коммерческая мебель
- Кухни
- Проекты в карандаше
- Материалы
- МДФ
- МДФ под пленкой
- Акриловый пластик
- Шпон ценных пород дерева
- Фурнитура
- Многофункциональная фурнитура KOMANDOR
- Многофункциональная фурнитура Aristo
- Кухонные фасады
- Фасады массив дуба
- Фасады МДФ эмаль
- Фасады МДФ гладкие в пленке
- Фасады МДФ фрезерованные в пленке
- Фасады МДФ пластик в алюминиевой рамке
- Фасады МДФ пластик
- Фасады эконом
- Кухонные корпуса
- Кухонные столешницы
- Мягкая 3D экокожа «Luxor»
- Декоративные зеркала и стекла «Miracle»
- Алюминиевый профиль «ALTA»
- Декоративная экокожа «Leathery»
- ЛДСП
- Egger (Австрия)
- Kronostar (Польша)
- Декоры дверей
- Декоративное стекло и зеркало
- Цветное стекло oracal, lacobel
- Кожа
- Пластики, акрил FRIZZZ, KAMELLIT
- Панели из бамбука и ротанга
- Профили для дверей-купе Absolut
- МДФ-профиль Absolut для распашных дверей
- Рисунки на дверях
- Пескоструйные (матовые, сатинат)
- Фотопечать (цветные)
- Витражи
- Профили для шкафов купе
- Профили для шкафов купе ABSOLUT
- Профили для шкафов купе KOMANDOR
- Профили для шкафов купе Aristo
- МДФ
- Услуги
- Выезд замерщика-дизайнера
- Разработка дизайн-проекта
- Разработка дизайна интерьеров
- Доставка и монтаж
- Оплата
- Купить в кредит
- Контакты
Меню
- О нас
- Услуги
- Почему мы?
- Комплексные решения
- Наши преимущества
- Бесплатный выезд дизайнера
- Схема работы
- Конструктор шкафа купе
- Наши работы
- Варианты оформления
- Отзывы
- Письмо директору
- Среди клиентов
- Мебель на заказ
- Гардеробные
- Двери купе
- Шкафы купе
- Прихожие
- Гостиные
- Библиотеки
- Кабинеты
- Спальни
- Шкафы-купе «ALTA»
- Шкафы-купе с зеркалами и стеклами «Miracle»
- Шкафы-купе с мягкой 3D экокожей «Luxor»
- Шкафы-купе с экокожей «Leathery»
- Детская мебель
- Кинозалы
- Бюджетный вариант
- Коммерческая мебель
- Кухни
- Проект в карандаше
- Наш ТВЦ
- Акции
- Другое
- Услуги
- Контакты
Мебель
mebel-3d.ru
сколько кв. метров для нее нужно и почему вам стоит ее сделать
Наверх Перепланировки- Каталог домов
- Квартира
- Спальня
- Кухня
- Столовая
- Гостиная
- Ванная комната, санузел
- Прихожая
- Детская
- Мансарда
- Маленькие комнаты
- Рабочее место
- Гардеробная
- Библиотека
- Декорирование
- Мебель
- Аксессуары
- Загородный дом
- Ландшафт
- Системы хранения
- Коридор
- Уборка
- Фундамент
- Кровля
- Стены
- Окна
- Двери и перегородки
- Потолок
- Балконы и лоджии
- Внутренние конструкции
- Пол
- Водоснабжение и канализация
- Отопление
- Вентиляция и кондиционирование
- Газо- и энергоснабжение
- Освещение
- Сантехническое оборудование
- Безопасность и домашняя автоматика
- Бани, сауны, бассейны
www.ivd.ru
Дизайн гардеробной комнаты фото 3 кв м – прихожая 3 метра
Гардеробная комната – поместиться все
Фотографии ремонта
Дизайн квартиры от Артема Шелипова, 33 кв.м.
Дизайн современной гостиной комнаты… маленькие гостиные… современные кухни дизайн… маленькие кухни дизайн… дизайн серой кухни… современный ремонт кухни… дизайнер постарался…
Фотографии ремонта
Интерьер квартиры-студии, 133 кв.м.
Общая площадь: 133 кв… дизайн большой гостиной… светлая гостиная… дизайн интерьера белой гостиной… ремонт гостиной в скандинавском стиле… дизайн кухни в скандинавском стиле… ремонт большой кухни… дизайн интерьера кухни в скандинавском стиле… просторно и светло, цветовая гамма приятная, не напрягающая, как раз в меру цветных деталей на светлом фоне…
Фотографии мебели
Прихожая Дебют – 3
Прихожая дебют – 3 является отличным вариантом для небольших по площади прихожих и прекрасно подойдет для небольшой семьи… в составе прихожей представлена трехсекционная тумба для обуви, двери которой открываются вперед, каждая секция оборудована посередине полкой, шкаф для одежды с верхней полкой и выдвижной штангой для одежды… для изготовления использовался материал лдсп… цена прихожей дебют – 3: 8754 руб…
Фотографии мебели
Прихожая Кармен – 3
Прихожая кармен – 3 характеризуется ярким современным дизайном, оригинальным цветовыми решением и компактным размером, позволяющий разместить ее даже в небольших по площади помещениях…
в шкафу (справа) за распашной дверью антресольная полка и выдвижная штанга… цена прихожей кармен – 3: 7620 руб…
Статьи и советы
Наливные 3D полы
Весьма удачно под такие критерии подходят наливные 3d полы – настоящее чудо современной дизайнерской мысли… технологии 3d наливных полов.. 3d рисунок на асфальте технология 3d наливных полов основана на творчестве 3d-художников… это художники, которые научились рисовать объемные изображения на горизонтальных, вертикальных и других поверхностях… дизайнеры интерьера же позаимствовали эту технологию, доработали и создали свои творения в виде 3d полов… наливной 3d пол в прихожей назвать технологию 3d наливных полов сверхсложной нельзя… сложность заключается в скрупулёзной укладке слоев материала, при которой необходимо достичь максимальной ровности поверхности… эффектный 3d пол на кухне наливные 3d полы – это самый лучший способ придать интерьеру оригинальности и уникальности… подобрать рисунок пола можно, ориентируясь на свои вкусы и желания, а также на общий стиль интерьера…
Фотографии ремонта
Дизайн квартиры 36 кв.м., ул. Десятинная
Прихожие комнаты… дизайн проект прихожей… дизайн гостиной комнаты современный стиль… современная прихожая дизайн… большие прихожие интерьер… коричневые прихожие ремонт… оформление современной прихожей… прихожая интересная, имитация кирпича красиво сочетается с полом выложенным плиткой, а зеркала увеличивают визуально площадь… зеркальная стена, составленная дверями шкафа-купе, действительно, добавляет простор…
Фотографии ремонта
Проект дизайна интерьера, 83м2., Санкт-Петербург
Оформление прихожей… проект прихожей… гостиная в современном стиле… ремонт прихожей в современном стиле… белые прихожие дизайн… оформление прихожей в коричневом цвете… дизайн прихожей в белом цвете… оформление коричневой прихожей…
Фотографии ремонта
Дизайн однокомнатной квартиры 35 кв.м.
Фото ремонта и дизайна однокомнатной квартиры 35 кв… дизайн современной гостиной комнаты… дизайн гостиной в маленькой квартире… дизайн гостиной в современном стиле… маленькая гостиная… а почему на фото кухни нет? мне была было бы очень интересно взглянуть, просто у нас квартира практически такая же, по метражу 38 метров и кухня не очень — то большая, вот ищу варианты как именно кухню отделать… вроде как уже определилась ,у нас тут недалеко от дома фирма бобр есть, ходила туда вроде все понравилось, вариантов много и поставляют почти в собранном виде и цены хорошие, но вот просто не могу до конца определиться с цветом и прочее, было бы интересно увидеть у кого как… синяя подсветка по периметру потолка гостиной — очень экстравагантна, с одной стороны создаёт ощущение дизайна будущего, с другой — ощущение клубной атмосферы…
Фотографии ремонта
Дизайн 4-х комнатной квартиры, 143 кв.м.
Санузел дизайн… оформление ванной комнаты… дизайн интерьера прихожей… большая кухня интерьер… коричневая кухня дизайн интерьера… дизайн кухни большого размера… отделка большой прихожей… приятный дизайн, но хочется в кухне столик другой поставить – круглый, без острых углов… изысканный дизайн…
Как сделать гардеробную: планировка и наполнение
особенно понравились нежные пастельные тона детской комнаты, яркие пятна травянистого цвета – очень комфортно, уютно и солнечно…
Фотографии ремонта
Дизайн квартиры в Санкт-Петербурге, 135 кв.м.
Общая площадь: 135 кв… дизайн гостиной… гостиные комнаты… ванная дизайн… дизайн интерьера ванной комнаты… дизайн туалета… в дизайне впечатляет теплота… в квартире замечательные оттенки…
Фотографии ремонта
Дизайн 7-комнатной квартиры в Стокгольме, 340 кв.м.
Общая площадь: 340 кв… гостиные дизайн… столовые дизайн… декор кухни… дизайн проект столовой… спальня дизайн… образец почти идеального дизайна, заслуживающего безусловной похвалы и образца для иных горе-дизайнеров… мое `почти` связано с решением потолочного света в гостинной и потолочными встроенными спотами в ванной…
Фотографии ремонта
Дизайн квартиры в Стокгольме, 223 кв.м.
Общая площадь: 223 кв… дизайн кухни… интерьер спальни… дизайн большой гостиной… светлые гостиные… только самое необходимое, остальное — в шкаф! в каждой комнате используются только 3 нейтральных цвета, прекрасно сочетающиеся друг и другом… не совсем удачны в гостиной помпезная люстра и стулья… видно — что квартира ещё не обжита, везде пустота, сложно оценить целостность дизайна без деталей быта, но спальная — очень мила… понравился желтый солнечный цвет гостиной…
Фотографии ремонта
Дизайн 3-хкомнатной квартиры в Москве от Юлии Маркос
Дизайн 3 комнатной квартиры в городе москва решен в теплых тонах, в современном стиле… одна из комнат была отведена под детскую для двоих маленьких детей… спальня дизайн… современная гостиная после ремонта… дизайн гостиной комнаты современный стиль… дизайн большой гостиной… коричневые гостиные… детская комната кажется слишком взрослой, здесь не хватает именно `детского` дизайна… тыловые колонки по обеим сторонам `солнца` висят слишком высоко…
Фотографии ремонта
Дизайн квартиры 53 кв.м., Москва
Дизайн интерьера кухни… евроремонт спальни… ванная дизайн… дизайн проект ванной комнаты… ванная дизайн… декор ванной… но! впечатление, что площадь квартиры все же больше чем 53 кв…
Фотографии ремонта
Уютный дизайн загородного дома, 350 кв.м.
Благодаря большому количеству окон, помещения полны света, что дало возможность использовать в дизайне темные тона и плотные ткани… два верхних этажа из дерева: балки покрасили и обклеили шпоном… дизайн дома получился очень красивым и «воздушным» с теплой атмосферой… перепланировка гостиной… дизайн интерьера кабинета… декор спальни… дизайн интерьера туалета… оформление ванной комнаты… действительно, уютный дизайн… понравились большие окна, чувствуется простор, свобода, свежесть…

Еще несколько лет назад гардеробная комната была мечтой любой женщины, роскошью, которую не могли себе позволить обитатели малогабаритных квартир.
Сегодня квартиры стали просторнее, и появилась возможность обустроить данное помещение. Владельцы собственных домов предпочитают определять место гардеробной еще на стадии проектирования, так как ее наличие освобождает место в жилых комнатах, не загромождая их различными шкафами.
Просторная гардеробная – залог порядка, каждая вещь имеет свое место, все на виду, но при этом аккуратно разложено и развешено.
Основные принципы планировки гардеробной
Угловая планировка – вариант, когда помещение устраивается в углу комнаты. Такая планировка применяется в небольших помещениях, например в спальне.

На схеме гардеробная располагается слева от входа. Данная спальня площадью 21 кв. м. позволяет устроить достаточно вместительную гардеробную площадью 3.81 кв. м.

В небольшой спальне площадью всего 13.68 кв. м. тоже можно устроить угловую гардеробную площадью чуть больше 2 кв. м., расположив при этом мебель параллельно и перпендикулярно скошенной стене.

Для углового помещения гардеробной можно найти место и в прихожей, и в детской комнате.
П-образная планировка – это комната прямоугольной или квадратной формы в плане, где полки и штанги с вещами располагаются по периметру трех стен.

П-образная комната-гардероб, выделенная из помещения спальни дополнительной перегородкой – наиболее удобный вариант планировки. В ней достаточно места для вещей, в такое помещение вхожи обитатели дома, здесь можно расположить зеркала, ширмы и многое другое.

Пример п-образного помещения с двумя входами с разделением на женскую и мужскую половины, где каждый расположит свои вещи так, как ему это удобно.

Вариант расположения двух отдельных гардеробных, что, несомненно, избавит от ссор и взаимных претензий друг к другу двух обитателей спальни.

На схемах приведены примеры устройства гардеробных в спальне, однако аналогично можно решить интерьер гостиной или детской комнаты.
Линейная планировка – это фактически длинный шкаф вдоль одной из стен помещения (жилой комнаты или коридора), когда иного места для гардероба не найти.

Но и в этом случае при грамотной планировке и начинке можно найти место для большинства вещей и предметов быта.
Выполнение проекта гардеробной комнаты
Приступая к планировке столь важного в нашей жизни помещения нужно учесть множество моментов:
- использование каждого сантиметра полезной площади;
- определить состав вещей и аксессуаров, которые мы предполагаем разместить;
- учесть глубину и ширину полок и ниш для хранения;
- распределить вещи по частоте их использования (нижний, средний и верхний отсеки).
Дизайн гардеробной комнаты зависит от размера помещения и выбранной системы хранения. Металло-каркасные конструкции стоят дороже, но позволяют варьировать высоту полок, выдвижных корзин и рейлингов, меняя их при необходимости, однако такие системы смотрятся очень технично.

Гардеробная с полками и выдвижными ящиками из ДСП уютнее за счет фактурности и цвета материала, но в этом случае необходимо тщательно продумать места расположения всех составляющих элементов.

Для хранения мелких вещей (белье, носки, платки, шарфы, шапки, перчатки и пр.) лучше соорудить выдвижные ящики на подобие комодных или установить корзины или пластиковые короба.

Одежду, хранящуюся на плечиках, развешивают на специальных штангах, которые крепятся на разной высоте.
Планировка гардеробной комнаты
Штанги для рубашек, блузок, юбок, пиджаков лучше располагать в два уровня друг над другом, расстояние между ними 110-120 см.

На высоте 140-180 см крепим штанги для платьев, пальто, плащей. Трикотажные легко растягивающиеся вещи лучше хранить на полках. Расстояние между полками делайте 35-40 см, а глубину 40 см.
Полки и выдвижные ящики располагайте по одной стене, а штанги – по другой, так вы сэкономите больше места для передвижения внутри помещения, ведь глубина полок отличается от глубины ниш для штанг. Полки имеют глубину 40-45 см, а ниши для штанг 50-60 см, определяется это шириной плечиков и одеждой, хранящейся на них.

Если вы предполагаете хранить в общей гардеробной обувь, то для нее нужно устроить разновысокие полки для разного вида обуви, глубину определяем по размеру обуви.
В помещении гардеробной иногда располагают и некоторые предметы быта. Возможно сюда же нужно поместить пылесос, тогда для него необходимо сделать небольшой шкафчик. Предусмотрите узкую вертикальную нишу для гладильной доски с небольшой полкой в верхней части для утюга. Очень удобно не выходя из гардеробной прогладить какую-либо вещь.

В верхней антресольной части обычно хранится сезонная одежда, одеяла, подушки, все то, чем не пользуются каждодневно.
Двери в гардероб можно сделать открывающимися или откатными. Для откатных дверей соорудите специальный короб, чтобы полотна дверей не «съедали» полезную площадь, ни внутри помещения, ни снаружи.

Необходимо продумать и систему освещения, гардеробная должна быть хорошо освещена. Для этого используйте поворотные светильники и подсветку полок.
Зеркала полезны и для осмотра себя во время переодевания, и для визуального расширения пространства. Если для зеркала нет место, расположите его на двери.

Можно предусмотреть принудительную вентиляцию, если такая возможность есть, либо установить в стене или двери решетки для свободного доступа воздуха в помещение для проветривания.
Неплохо было бы сделать пол теплым, в этом случае в помещении не будет скапливаться влага.
Гардеробная комната своими руками
Определив место гардеробной, обязательно сделайте план-схему и схему расположения всех элементов гардероба.

Стены помещения выполните из металлического или деревянного каркаса и обшейте его листами гипсокартона. Цвет стен внутри помещения лучше предусмотреть светлых оттенков, особенно в гардеробных комнатах маленьких размеров.


Можно сделать гардеробную комнату из кладовки, правда, размеры кладовки в квартирах обычно не очень велики. Но это не должно стать препятствием для воплощения мечты. Полки и рейлинги расположите по двум сторонам помещения, максимально используя полезное пространство. Небольшая гардеробная все же лучше, чем ее полное отсутствие.
interio-style.ru
фото обустройства, изготовление на заказ гардеробных комнат площадью 1 кв м
- О нас
- О нас
- О нас в СМИ
- Производство
- Другое
- Шторы и ткани оптом
- Диваны и кресла
- Садовая мебель
- Натяжные потолки
- Ортопедические матрацы
- Оконные стеклопакеты
- Сотрудничество
- Портфолио дизайнеров
- Отзывы
- Хроника монтажей
- Каталог статей
- Наши преимущества
- Акции
- Акции
- Мебель
- Гардеробные
- Двери-купе
- Шкафы купе
- Прихожие
- Гостиные
- Библиотеки
- Кабинеты
- Спальни
- Классические двери купе и шкафы
- Коллекция VENICE
- Коллекция YVOIRE
- Коллекция VERSAILLES
- Коллекция AVIGNON
- Коллекция FLORENCE
- Коллекция VERONA
- Шкафы-купе «ALTA»
- Шкафы-купе с мягкой 3D экокожей «Luxor»
- Шкафы-купе с зеркалами и стеклами «Miracle»
- Шкафы-купе с экокожей «Leathery»
- Бюджетные шкафы
- Детская мебель
- Кинозалы
- Коммерческая мебель
- Кухни
- Проекты в карандаше
- Материалы
- МДФ
- МДФ под пленкой
- Акриловый пластик
- Шпон ценных пород дерева
- Фурнитура
- Многофункциональная фурнитура KOMANDOR
- Многофункциональная фурнитура Aristo
- Кухонные фасады
- Фасады массив дуба
- Фасады МДФ эмаль
- Фасады МДФ гладкие в пленке
- Фасады МДФ фрезерованные в пленке
- Фасады МДФ пластик в алюминиевой рамке
- Фасады МДФ пластик
- Фасады эконом
- Кухонные корпуса
- Кухонные столешницы
- Мягкая 3D экокожа «Luxor»
- Декоративные зеркала и стекла «Miracle»
- Алюминиевый профиль «ALTA»
- Декоративная экокожа «Leathery»
- ЛДСП
- Egger (Австрия)
- Kronostar (Польша)
- Декоры дверей
- Декоративное стекло и зеркало
- Цветное стекло oracal, lacobel
- Кожа
- Пластики, акрил FRIZZZ, KAMELLIT
- Панели из бамбука и ротанга
- Профили для дверей-купе Absolut
- МДФ-профиль Absolut для распашных дверей
- Рисунки на дверях
- Пескоструйные (матовые, сатинат)
- Фотопечать (цветные)
- Витражи
- Профили для шкафов купе
- Профили для шкафов купе ABSOLUT
- Профили для шкафов купе KOMANDOR
- Профили для шкафов купе Aristo
- МДФ
- Услуги
- Выезд замерщика-дизайнера
- Разработка дизайн-проекта
- Разработка дизайна интерьеров
- Доставка и монтаж
- Оплата
- Купить в кредит
- Контакты
Меню
- О нас
- Услуги
- Почему мы?
- Комплексные решения
- Наши преимущества
- Бесплатный выезд дизайнера
- Схема работы
- Конструктор шкафа купе
- Наши работы
- Варианты оформления
- Отзывы
- Письмо директору
- Среди клиентов
- Мебель на заказ
- Гардеробные
- Двери купе
- Шкафы купе
- Прихожие
- Гостиные
- Библиотеки
- Кабинеты
- Спальни
- Шкафы-купе «ALTA»
- Шкафы-купе с зеркалами и стеклами «Miracle»
- Шкафы-купе с мягкой 3D экокожей «Luxor»
- Шкафы-купе с экокожей «Leathery»
- Детская мебель
- Кинозалы
- Бюджетный вариант
- Коммерческая мебель
- Кухни
- Проект в карандаше
- Наш ТВЦ
- Акции
- Другое
- Услуги
- Контакты
Мебель
mebel-3d.ru
Гардеробная комната: планировка с размерами
Присутствие в помещении гардеробной комнаты способствует эргономичному использованию жилого пространства. Огромное количество личных вещей всех членов семьи можно компактно разместить на небольшом участке. Сделать это в просторном частном доме несколько проще, нежели в стандартной квартире старого образца. Но задача вполне выполнима. Предложенные планировки с размерами гардеробной комнаты помогут достигнуть цели. Изучение нюансов обустройства предотвратит ошибки при собственном проектировании.

Виды гардеробной комнаты
Универсального проекта гардеробной комнаты не существует. Каждая планировка строго индивидуальна и зависит от нескольких обстоятельств. Размер помещения и планируемая итоговая сумма сметы являются определяющими факторами, имеет значение количество пользователей гардеробом, их возрастная категория и половая принадлежность.
Основное отличие гардеробной от классического шкафа – возможность войти внутрь. Стенки комнаты полностью заполнены вешалками, полочками и ящиками с условием свободного доступа к каждому сектору. Помимо одежды и обуви, гардеробная комната может стать местом хранения гладильной доски, мелкой бытовой техники, стремянки и прочих предметов быта. Затраты на обустройство гардероба во многом зависят от используемых материалов. Поэтому при планировке и проектировании этому пункту уделяется особое внимание. Поможет с выбором характеристика различных вариантов.

ДСП
Долговечность и дешевизна – основные преимущества проекта. Все нюансы планировки стоит тщательно продумать заранее, потому что плиты одновременно выполняют функции каркаса, и менять конструкцию крайне затруднительно.
Внимание! Защита от влаги – непременное условие обустройства гардеробной комнаты из ДСП. Взаимодействие с водой приведет к деформации плит и нарушению прочности конструкции.
При обустройстве гардеробной из ДСП сверление стен не требуется, все полки зафиксированы на каркасе. Очередное достоинство решения – разнообразие фактуры и цвета материала, возможность использовать недорогую фурнитуру.

Применение металлических элементов
Планировка комнаты с применением металлических элементов обойдется дороже. Это касается как стальных сварных конструкций, так и хромированных стоек. Второй вариант выглядит более эстетично. Внутреннее наполнение каркаса разнится. Это может быть комбинированный вариант, когда полки выполнены из ДСП, или полностью металлический дизайн, когда для хранения вещей предназначены сетчатые ящики.
Достоинства планировки гардеробной с применением металлической конструкции:
- Прочность каркаса.
- Возможность корректировки высоты полок.
- Применение сетчатых стеллажей обеспечивает вещам хорошее проветривание.
- Устойчивость перед влагой.
Внутреннее убранство гардеробной комнаты недоступно посторонним взглядам, поэтому при ограниченном бюджете предпочтение в планировке отдают конструкциям из ДСП.

Варианты дверей
При планировке гардеробной комнаты внимание заслуживает вопрос выбора дверной конструкции. Ориентируясь на смету проекта и место обустройства, возможны следующие варианты:
- Практичность наряду с эффектным внешним видом свойственна дверям купе. Внешняя зеркальная поверхность скорректирует проблему малогабаритного пространства. Этот прием приемлем для любого помещения, будь то коридор, спальня или детская комната.
- Более экономно обойдется конструкция «гармошки» или навесная модель на роликах. Достоинство выбора – возможность установки в комнате небольших размеров.
- Нетривиальностью отличается решение оформить гардеробную японскими шторами. Это будет уместно при господстве в интерьере восточного стиля.
- Приверженцам лаконизма и последовательным перфекционистам можно вовсе обойтись без дверей. Идеальный порядок во всем для них норма, поэтому гардеробная комната предстает перед взором в виде стеллажей и вешалок, не скрытых дверями.
Размеры комнаты, бюджет планировки и дизайн помещения – определяющие факторы при выборе конструкции дверей. Различные способы внутреннего оформления гардеробной представлены на фото:



Определяем место для гардероба и его размеры
Счастливым обладателям просторного частного дома выбрать место для гардеробной комнаты несложно. Как правило, под нее отводится полноценное помещение. Сложнее обстоят дела у владельцев малогабаритных квартир, им придется позаботиться о перепланировке. Поэтому вопрос размеров гардеробной стоит на первом месте.
Меньше, чем 1,5 м2 оборудовать маленькую гардеробную комнату не имеет смысла. Традиционно она имеет форму прямоугольника, поэтому примерные размеры будут 1х1,5 м. Иногда, если позволяет планировка квартиры, оформляют угловую гардеробную комнату. В этом случае она получается даже большей вместимости.

При планировке размеров обязательно учитывают внутреннее наполнение комнаты. Существует 3 основных варианта расположения полок:
- Одностороннее размещение. В этом случае минимальная ширина гардеробной составляет 1,2 м.
- Двусторонние стеллажи требуют как минимум 1,5 м пространства.
- П-образная конструкция. Ширина ее также не может быть меньше полутора метров, а вот глубину придется увеличить.


Основное условие выбора размера при планировке – возможность беспрепятственно войти в гардеробную комнату. Этим они отличаются от вместительных шкафов купе. Вторая характерная особенность – возможность установить двери различных конструкций.
Оптимально, когда гардеробная располагается в спальне. Реже выбирают вариант с коридором или местом под лестницей в частном доме. В этом случае там удобно хранить зимние вещи, зонтики, велосипед или лыжи.
Совет! Хранение в гардеробной комнате шерстяных и меховых изделий обязывает позаботиться о наличии защитных средств от моли.
По возможности планировку гардеробной для ребятни лучше предусмотреть в детской комнате.


Практичные идеи наполнения пространства
Чтобы гардеробная комната была максимально функциональной, важно грамотно провести планировку внутреннего пространства. Здесь имеет значение каждая мелочь – высота и глубина полок, выдвижные механизмы для ящиков, всевозможные штанги. Практичные советы помогут не совершить ошибки при планировке собственной гардеробной комнаты:
- Вешалки. Ширина для плечиков примерно 0,5 м. Высота от пола до штанги для рубашек – около 1 м, платьев – 1,4 м, вечерних нарядов в пол – 1,8 м. Каждому предмету гардероба на вешалке отводятся порядка 7 см пространства. Сэкономить место в комнате для гардероба помогают подъемные штанги, оснащенные лифтовыми механизмами.

- Полки. Глубокие полки лучше сделать выдвижными для удобства доступа к вещам. Конструкцию следует оградить боковыми стенками, чтобы содержимое не рассыпалось. Небольшие полки выполняют на стационарной основе.
- Ящики. Плавное движение ящикам обеспечат специальные доводчики. Для хранения мелких предметов рекомендуется предусмотреть внутренние перегородки. Размер ящиков варьируется в зависимости от заполненности. Для белья в планировке гардеробной комнаты предусмотрены объемные конструкции, мелкие вещи уместятся в ящиках небольших размеров.
- Подставки под обувь. Спортивную обувь, балетки и мужские модели хранят на горизонтальных полках глубиной 30-35 см. Для моделей с каблуком в планировке лучше предусмотреть наклонные конструкции. Сапоги и ботинки лучше поместить в короба.
- Корзины. Оптимально подходят для размещения подушек и одеял. Эти предметы рекомендуется хранить в вакуумных пакетах, обеспечивающих значительное уменьшение объема вещей.
Специальные держатели для галстуков и брюк, подставки для шляп и зонтов способствуют более комфортной эксплуатации гардеробной комнаты.
Представленные ниже схемы и фото помогут выбрать подходящий вариант планировки гардеробной в зависимости от размеров комнаты.




Нюансы планировки
Независимо от размеров комнаты, при планировке рассматривают вопрос установки вентиляции. В противном случае там быстро появится затхлый запах, устранить который не помогут никакие освежители и ароматизаторы.
Принцип обустройства довольно прост: на стене, подальше от дверей, пробивается вытяжное отверстие, которое закрывают вентилятором. Выход отверстия может быть в общую вентиляционную шахту, если планировка комнаты для гардероба ведется в многоэтажном доме, или на улицу в случае частного владения. Для притока свежего воздуха будет достаточно щелей в дверях, при желании можно оборудовать специальные незаметные отверстия.
Важно! При выборе вентилятора для гардеробной комнаты обращают внимание на уровень шума, который он издает. Это особенно важно, если планировка гардеробной идет в спальне.
Следующие рекомендации помогут грамотно организовать планировку в комнате для гардероба:
- Во избежание путаницы каждому члену семьи выделяется индивидуальный отсек.
- Редко используемые предметы задвигают в дальние углы. Вещи первой необходимости в комнате для гардероба должны всегда находиться под рукой.
- Дорогие костюмы и вечерние туалеты хранят в чехлах.
- При планировке конструкции на первом месте стоит сектор для вешалок с длинными вещами. Он один из самых крупногабаритных. Остальные отсеки меньших размеров распределяют традиционно: головные уборы вверху, обувь внизу, центральная часть отводится под текстиль.
- Правильная планировка гардеробной комнаты предусматривает минимальный размер прохода между стеллажами 0,6 м.
При планировке учитывается рост будущих пользователей, если гардеробная предназначена для всей семьи, детям выделяют нижние сектора.



Организация освещения
Обычно естественное освещение в гардеробной комнате отсутствует. Поэтому при планировке учитывают вопрос качественной подсветки. Желательно, чтобы искусственные потоки были максимально приближены к естественной дневной обстановке.
Осветительные приборы распределяют равномерно по всей площади гардеробной. Если комната небольших размеров, подойдут точечные источники света или светодиодная лента. Практичностью обладают лампы на прищепках, оснащенные гибкими ножками. Функциональный прибор позволяет осветить в гардеробной комнате самый дальний уголок.
Совет! Монтаж освещения с датчиком движения сбережет время на поиски выключателя и сэкономит расходы на электричество.
Планировка большой гардеробной комнаты обычно включает комбинированную систему освещения, где потолочные приборы дополнены настенными источниками света.


Заключение
Собственная планировка комнаты для гардероба позволяет сэкономить на отдельных элементах. Красивый хром виден исключительно владельцу, поэтому от него можно отказаться в пользу бюджетного ДСП. Доводчики движения устанавливают только на часто используемых ящиках. Качественная фурнитура продлит эксплуатацию всей конструкции, поэтому выбирают хорошо зарекомендовавшие себя бренды.
Выделение в квартире или доме места под гардеробную позволит сделать остальные помещения более свободными и визуально увеличит пространство.
bouw.ru
Как правильно спланировать гардеробную комнату. Правила планировки и зонирования
На первый взгляд может показаться, что гардеробная – непозволительная по меркам стандартных российских квартир роскошь. В самом деле, терять драгоценные метры, отделяя относительно большую часть жилого помещения под «хознужды» — довольно смелое решение. Однако этот «продукт» западной цивилизации появляется во всё большем числе российских квартир (всё больше проникает в российские жилища) – и немудрено. Как бы парадоксально это ни звучало, но отдельная гардеробная, даже небольшая, не только не забирает, а наоборот, экономит место, позволяя освободить больше пространства для жизни в остальных комнатах.
Однако простого выделения места для хранения одежды вовсе не достаточно. В этой статье мы расскажем о том, как правильно спланировать гардеробную комнату, какие нюансы и детали учитывать, чтобы не только рационально использовать пространство, но и пользоваться им с максимально комфортно.
Часть первая. Планирование
Как и все великие дела, устройство гардеробной необходимо начать с планирования и анализа.
Шаг 1. Один человек или несколько? Определяемся с пользователями гардеробной – один человек, супруги, вся семья или дети. В идеале у каждого члена семьи должно быть своё собственное отдельное помещение (пусть даже маленькое), но, к сожалению, в большинстве российских квартир это нереально. Если гардеробной пользуются 2-3 человека, у каждого должна быть своя «зона влияния».
Шаг 2. Определяем, что именно будет храниться в гардеробной, какие вещи.
В гардеробной можно хранить как базовые вещи, обувь, так и одеяла, подушки, чемоданы, крупные сумки, спортинвентарь, а также украшения. Всё зависит от размера помещения или величины отведённого под гардеробную пространства.
Шаг 3. Сортируем вещи для хранения: делим на те, которые хранятся в подвешенном состоянии, и те, для хранения которых требуются полки. В итоге получаем а) сколько нужно вешалок, б) сколько нужно полок.
Важно! Оставляйте запас! Ведь гардероб пополняется, а с выбрасыванием у нас, учитывая традиционную русскую «бережливость» и смекалку в использовании ненужных вещей, порой возникают большие проблемы :))
Шаг 4. Измеряем самые длинные платья, чтобы понять, какие отделения планировать под длинномеры. Опять же нюанс – если в вашем гардеробе имеется одно супердлинное вечернее платье, не стоит подгонять высоту штанги только под него. Такой наряд вполне можно хранить перекинутым через перекладину вешалки (разумеется, в чехле для платья).
Шаг 5. Имея в наличии размеры (как помещения, так и того, что нужно там разместить) и точно зная количество полок, можно начать рисовать эскиз гардеробной. Как вариант, можно просто нарисовать на бумаге то, что необходимо разместить, в масштабе, скажем 1:10, вырезать, и уже наглядно двигать туда-сюда, продумывая оптимальную комбинацию.
Необходимо учитывать и удобство использования. Приведённые ниже таблицы показывают, сколько места в каких положениях занимает человек и на какую высоту он может дотянуться.
При планировании гардеробной комнаты учитывайте также правила зонирования (размещены в конце статьи).
«На выходе» у вас получится чёткая продуманная схема, на основании которой можно заказывать шкафы и стеллажи, а также станет ясно, какие нужны кофры для хранения, плечики и дополнительные аксессуары.
Часть два. «САНТИМЕТРАЖ»
Ширина шкафов
Что касается ширины отделений для вещей, хранящихся на вешалках: по мнению специалистов, нормальным расстоянием между плечиками можно считать 5 сантиметров, плотным размещением – 2 см. При планировке учитывайте, пожалуйста, что оптимальность оптимальностью, а вентиляцию ещё никто не отменял. Даже есть вы сможете гордиться тем, что не потратили «впустую» ни единого сантиметра, платой за такую рациональность станет неприятный затхлый запах в гардеробной (все же помнят запахи в бабушкиных кладовках и сундуках?). Кроме того, одежда, которая плохо вентилируется, хуже сохраняется.
Ширина вешалок-плечиков – 34-51 сантиметров. Они подбираются исходя из размера вашей одежды. Учитывая широкий выбор этого аксессуара (хотя бы даже в нашем интернет-магазине) это обеспечить достаточно просто (мы уже рассказывали, как точно подобрать плечики по размеру)
Глубина шкафа – от 50 до 60 сантиметров. Европейский стандарт – 56 сантиметров.
Вещи, хранящиеся на плечиках, бывают двух типов: длинные и короткие. Для первых предусматривается отсек от 1, 5 метров, для вторых – около 1 метра.
Отсек для брюк – 120-130 см
|
|
|
|
|
Из статьи «Что учесть при планировке гардероба: 5 важных нюансов», INMYROOM |
Несколько советов:
✔ Расстояние между штангой для одежды и верхней полкой должно быть не меньше 4-5 сантиметров, чтобы снимать одежду было удобно.
✔ Короткие вещи лучше хранить на двух штангах одна над другой, оптимальное расстояние между ними 80-100 см. (высота одной короткой штанги – примерно 100 см)
✔ Полки. Высота полок – 35-40 см. По мнению специалистов-мебельщиков, она должна быть не менее 32 см.
✔ «Проверенная временем» глубина полок — 40 см+
✔ Если вы сделаете полочки шириной 50-60 см, на них точно и аккуратно поместятся 2 стопки вещей. На наш взгляд, это очень удобный размер. Длинные полки (80 см) необходимо снизу чем-то «подпереть», чтобы они не прогибались под тяжестью содержимого (предусмотрите перегородку снизу).
✔ Ящики для хранения. Оптимальная ширина выдвижных ящиков для хранения – 40-70 см, высота – около 40. Такие размеры обеспечивают оптимальную нагрузку на выдвижной механизм.
✔ Выдвижные ящики и корзины нужно делать на расстоянии не выше 110 см, иначе пользоваться ими будет неудобно. В крайнем случае — не выше 140 см (учитывайте рост! средний рост россиянина — 160-180 см.)

Что касается длины хранящейся одежды, то в каждом конкретном случае она индивидуальна. Перед планированием гардеробной, конечно, лучше измерить имеющиеся в наличии пиджаки, юбки, брюки, блузки…
Таблица примерных размеров одежды по высоте
![]() |
| Рисунок из сатьи «Полезные советы», мебельная компания Komandor |
Часть три. ОСНАЩЕНИЕ ГАРДЕРОБНОЙ КОМНАТЫ
1. Штанги и пантографы
Основополагающий, если можно так выразиться, элемент гардеробной. Как уже было сказано выше, планирование этого полезного помещения всегда начинается с выбора места для длинных вещей, а для этих целей используется высокая штанга (165+). Для рубашек, пиджаков, блузок необходимы штанги покороче, примерно 100 см, и их обычно бывает несколько.
Пантограф – это штанга со специальным механизмом, позволяющим её опускать на удобную высоту. Пантограф очень удобен, если под хранение коротких вещей вы решили задействовать всю стену.
2. Выдвижные вешалки для брюк
Они должны быть высотой примерно 60 см
3. Выдвижные ящики
Используются для хранения нательного и постельного белья, аксессуаров и украшений.
Укомплектовав их разделителями и упорядочив мелкие вещи внутри, можно избежать хаоса и приобрести некоторое количество времени, обычно затрачиваемого на поиск и уборку. Кроме того, созерцание ровных рядов белья каждое утро подарит ощущение порядка на весь день.
4. Полки
Могут быть как стационарными, так и выдвижными.
5. Коробки и корзины
В такой незаменимой вещи, как картонные коробки, хранить можно всё что угодно. Журналы, альбомы, фотографии, различные мелочи, художественные и швейные принадлежности… Это раньше весь ассортимент такой упаковки ограничивался использованными обувными коробками, сделанными из плохого картона. Сейчас же коробки выпускаются самых разных размеров, цветов и отличного качества; благодаря правильной форме можно заполнить ими какое угодно пространство так, чтобы не пропало ни одного сантиметра.
Корзины, особенно выдвижные сотовые, очень удобны для хранения постельного белья и мелочей.
6. Приспособления для хранения обуви
Обувь, как известно, бывает с каблуком и без, открытая и закрытая, мягкая и формованная, летняя и зимняя (ботинки и сапоги), а также реже встречающиеся «частные случаи» в виде горнолыжных ботинок и т.е. И если с размещением редко используемой или сезонной обуви вопросов нет (она отправится на антресоли, мягкая – в обувных кофрах, остальная – в коробках), то со всем остальным возможны варианты.
Для размещения обуви, которую вы решили хранить без коробок, в гардеробной можно сделать:
- открытые полки, как обычные, так и с наклоном (подойдут для обуви на плоской подошве),
- специальные подставки (сохранят обувь на каблуке),
- специальные крючки для хранения сапог в подвешенном состоянии (во избежание заломов голенища).
Перед началом проектирования каждая пара измеряется. Примерные размеры пары ботинок — 25см в ширину и 30-40 в длину, но — всё, конечно, индивидуально и зависит от размера обуви.
7. Вешалки для галстуков, шарфов, ремней и зонтиков
Бывают выдвижными, круговыми (устанавливаются в углу), подвесными (в этом случае аксессуары хранятся на штанге, как обычная одежда; вешалки для аксессуаров бывают самых разных форм, иногда довольно интересных). Ремни, шарфики и зонтики можно разместить и на обычных настенных крючках.
8. Отсеки для гладильной доски и сушилки
![]() |
Гладильные доски бывают разных размеров, поэтому без измерения не обойтись. Выделите под хранение этого предмета не менее 20 сантиметров в ширину. Если параметры гладильных досок как-то ограничены, то производители пылесосов стараются кто во что горазд и их творения индивидуальны. Если вы собираетесь хранить в гардеробной пылесос — замеры обязательны. |
|
|
Рис. из сатьи «Полезные советы», компания Komandor |
|
9. Зеркала
Если гардеробная просторная и позволяет там одеваться, то зеркало, в которое вы сможете увидеть себя в полный рост, обязательно. Хорошо иметь дополнительно ещё одно, небольшое, чтобы можно было оценить свой вид сзади.
Отсюда следует важный подпункт: ОСВЕЩЕНИЕ. Хорошее освещение там, где вы одеваетесь – точно также обязательно, как и большое зеркало. Если освещение только искусственное – установите несколько точечных светильников.
10. Если есть возможность, гардеробную хорошо укомплектовать пуфиком, тумбой или хотя бы консолью.
![]() |
![]() |
Часть четыре. Зонирование
При планировке гардеробной есть свои правила. Некоторые рекомендуют соблюдать специалисты, а некоторые (такие, как, например, ширина прохода между шкафами) продиктованы реальностью и не соблюдать их просто не получится.
Правила зонирования
1. Сначала распределяем длинную одежду. И уже потом всё остальное. Варьировать комбинации небольших составляющих намного проще, чем крупных.
2. Принцип распределения вещей: «как носим, так и храним», т.е. обувь размещаем внизу, а головные уборы – вверху.
3. То, что вы носите, должно быть на виду: на штангах или в самых доступных ящиках (+/- 40 см)
4. В верхней части (40-50 см до потолка) обычно устраивают антресоли (куда «поедут жить» чемоданы, сезонные вещи, одеяла и т.п. )
5. Для выдвижных элементов (полок, ящиков, корзин) необходимо предусмотреть дополнительное пространство (чтобы им было, куда выдвигаться). Как правило, это около 50 см.
6. Чтобы передвигаться между шкафами и стеллажами было удобно, минимально рекомендуемая ширина прохода – 60 сантиметров. При планировании этот «аспект» нужно учитывать.
7. Если гардеробной будет пользоваться не один человек, то для каждого необходимо заранее предусмотреть и спланировать собственную «зону влияния», где он сможет разместить свои вещи.

В тексте приведены примеры схем планирования системы хранения вещей, чтобы можно было составить общее представление о размерах различных секций. Каждый случай индивидуален и у вас может получится что-то, совершенно отличное от образцов, но точно подходящее именно вам — а значит, идеальная гардеробная.
Надеемся, эти рекомендации помогут вам правильно спланировать гардеробную комнату, сделав её максимально удобной, а использование пространства — максимально эффективным.
В статье использованы материалы:
«Полезные советы» от мебельного бренда Komandor
«Гардеробная комната: наполнение, расположение, организация пространства», сайт «Твой дизайнер»
ideal-garderob.ru




