Дровник для дачи своими руками чертежи: Дровяник для дачи своими руками: чертежи и пошаговая инструкция
как сделать возле дома, на даче, фото
Большая часть нашей страны отапливается печами на дровах. Если не дома, то на даче или в бане точно нужны дрова. Но дрова покупаются сырыми и их нужно где-то сушить. Для этого их складывают в поленницы или строят специальные навесы — дровяники или дровники (говорят по-разному в разных регионах). Конструкция незамысловатая и сделать дровяник своими руками — несложная задача.
Содержание статьи
Какие бывают
Лист металла убережет стены от древоточцев (деревянные, естественно)Если не обращать внимание на размеры, что есть два вида навесов для дров — пристроенные к стене какого-нибудь здания или стоящие отдельно. Понятно, что пристроить проще и быстрее, но не всегда это можно делать. Вернее, не со всеми строениями: пристраивать к деревянным стенам опасно. Причем не только с точки зрения пожарной безопасности. С дровами «прибывает» целая армия жучков-древоточцев, которые с удовольствием примутся за ваш дом.
Потому к деревянным строениям, даже с обработанной биозащитой древесиной лучше дровяники не пристраивать, а если очень хочется, то к стене прибить железный лист. Как на фото. Он должен быть больше размеров дровника. Тогда все жучки (большая их часть — точно) останутся в дровах.
Отдельно стоящие дровники могут быть совсем открытыми — несколько столбов, пара перемычек и крыша. Главное — чтобы крыша была достаточно большой: свесы желательно делать побольше. А остальное доделает воздух и солнце. Говорят, в них сохнет ничуть не хуже, чем в более закрытых сооружениях. В регионах с обильными снегопадами чтобы снег не забивался внутрь на зиму внизу прикрепляют (приставляют) листы фанеры. Их по весне снимают.
Какими делают стены
Чаще дровники строят с решетчатыми или щелястыми стенами. Лучше, если доски набиты под каким-то углом — по типу жалюзи. Тогда осадки даже при косом ветре мало попадают внутрь. Но даже если доски набиты с каким-то промежутком, все сохнет неплохо.
На каркас набивают доски/планки в основном горизонтально, иногда — вертикально, еще — делают решетки из тонких планок или ставят их наискосок.
В любом случае щелей для проветривания должно быть много.
Зависит ли скорость сушки от способа монтажа планок? Никаких сравнений не проводилось, так что достоверно сказать сложно. Но один владелец утверждает, что если набить доски наискосок (у него 10 см со щелью 2 см), причем каждая стена в другом направлении, высыхает все быстрее: за месяц.
О размерах щелей: их делают от 2 см до 10 см. Но зависит еще и от ширины доски. Если оставить щели очень широкими, заметает сильно снег. Если снега немного или вас его количество не беспокоит, можно набивать доски реже. Это еще и экономнее.
Красивый дровник для дачиДалеко не у всех дровяников есть двери (с дверьми еще называют «дровяной сарай»), как в варианте на фото. Часто нет даже передней стенки: так проветривается активнее. Передняя стенка и двери нужны, если в вашей местности подворовывают, а вообще можно обходится без них.
Расположение поленьев
Теперь немного о строении дровника.
Если он небольшой, и все помещается в один ряд, то проблем особых нет — все доступно. Но если загружаются большие объемы, его лучше делить площадь на сектора, в которые будут загружаться партии дров. Таким образом завезенные ранее и уже подсохшие не будут перекрыты свежими.
Если дровенник квадратный, расположите секции так, чтобы вы могли заходить внутрь, доставая самые сухие поленья. Для этого посередине оставляют проход. По глубине он не должен быть до стенки, но желательно, чтобы вас от стены отделял только один, максимум — два ряда поленьев (а вообще зависит от объемов) — так все они окажутся доступными. С прямоугольными проще: их просто делят не сектора перегородкой. Например, как на фото.
Такой вот большой навес для дров — в каждую секцию помещается одна машина — около 4 кубов. Задняя стенка не сплошная, если присмотритесь, там есть дырки.И немного о высоте. Дровник на дачу (сезонную) большой не нужен.
Всего то и нужно что один-два куба на протопку осенью/весной, да и то только на выходные. А вот если обогревать придется дом, да еще и баню, придется строить нечто солидное. Тогда, независимо от планировки — длинный или квадратный, высоту делают порядка 2 метров. При среднем росте загрузить вы сможете почти под потолок. но сверху должна остаться вентиляционная щель.
О том, как сделать красивые и недорогие дорожки в саду или на участке читайте тут. Об устройстве самодельного пруда можно прочесть в этой статье, а о том как превратить его в фонтан, здесь.
Строим дровяник своими руками
В этом разделе опишем, как строился дровяник возле дома. На постройку с покраской ушло три дня «без напряга». Строитлся по типу каркасного сарая.
Материалы
Внутренние размеры 1,8*3,7 м, высота передних стоек 2,45 м, задних — 2,2 м. Полный объем получился на 13 кубов, но грузят максимум две машины — не больше 10 кубов. Причем внутри оставляют дорожки — чтобы удобно было брать, до верха не загружают — не все в семье высокие.
Если загрузка будет полной, желательно поставит дополнительно укосины: чтобы дрова своим весом не выдавили доски обшивки.
Каркас сделан из бруса — стойки, нижняя и верхняя обвязка сделаны из бруса 100*100 мм. Брус предварительно пропитан отработанным машинным маслом. Собиралось все встык, гвоздями, усиливалось уголками на шурупах. Для опор куплены стандартные мелкие фундаментные блоки 200*200*600 мм в количестве 6 штук.
Строительство пошагово
Начало строительства дровника стандартное — выравнивание площадки и выставление по уровню блоков. Если грунты вязкие (глина суглинки, чернозем), лучше делать песчано-гравийную подушку. Выкопать небольшие котлованы 20-25 см глубины, насыпать и утрамбовать щебень, сверху установить блоки.
Выравнивание площадки — первый шаг строительства дровяникаНа блоки постелен в два слоя рубероид, сверху уложен брус. Обвязка ничем не стыкуется с опорой. Если есть желание, можете просверлить отверстия и забить шпильки.
Сначала выложили брусья нижней обвязки, скрепили их гвоздями (80*3 мм).
Затем на шурупы закрутили в уголки. Следующий шаг — установка стоек. Их ставят по углам и над промежуточной опорой. Задние стойки короче передних — чтобы был уклон кровли. Их тоже сначала выставили вертикально (проверяли отвесом), забили наискось гвоздями — по два с каждой стороны. После укрепили уголками на шурупах — по два на стойку. Если есть опасения, можно еще пластины прикрутить/прибить к каждой стойке снаружи.
Вход в дровник сделан по центру. Из-за этого стойки смещены и установлены не над блоком опоры. В результате есть небольшой прогиб. Чтобы его устранить, в первом ряду ставьте четыре блока, с учетом того, что середина будет занята под вход. Особенно, если будут двери: они прилично нагружают стойки, потому им опора необходима.
Впереди промежуточные стойки стоят не над опоройПосле того, как стойки выставлены, приходит время собирать крышу. Сначала прибил вверху боковые доски. Они установлены на одном уставлены на одном уровне с верхней обвязкой задней, более короткой части (видно на фото ниже).
Они и стропила сделаны из доски 50*100 мм, обрешетка из доски 30*100 мм.
В качестве кровельного материала использован профлист, доски положил под него плашмя. Свесы крыши — около 35 см, боковые выступы примерно такие же. Размер крыши подбирался так, чтобы не было обрезков: легло ровно четыре листа.
Под профлист постелен рубероид — чтобы конденсат не капал на дрова: расходы небольшие, а польза есть. Рубероид начал укладывать снизу, стелил вдоль свеса. Следующий с заходом на 10 см. Получилось, что капля, которая упала вверху просто стекает вниз, не попадая внутрь.
Так выглядит дровеник с готовой крышейСледующий шаг — настилаем пол. Его сделали из доски 100*40 мм. Укладывали со щелями в 2-3 см. Далее прибивают обшивку стен. Было решено сделать зазор равный ширине доски (100 мм). Доски прибивались гвоздями, по два с каждого краю. Конструкция получилась хорошо проветриваемая, правда, при боковом ветре сильно забивает снегом.
Дровяник своими руками почти готовПоследний этап — покраска.
Тут берете любой состав для древесины с био-защитными свойствами: чтобы жучки меньше ели. В данном варианте покрашен БиоТексом, цвет «палисандр».
Все, дровеник построен. Вы сможете такое повторить: сложного ничего. Плотницкие работы по сложности — на уровне учеников средней школы. Самые сложные узлы — кровля, но она сделана очень просто.
О том, как и чем украсить участок можно прочесть в этой статье.
Самодельные дровники: фото
Есть еще много подобных строений. Отличия небольшие, принцип тот же: каркас оббивается доской с разными зазорами. Есть несколько экземпляров, которые построили сами владельцы дач или частных домов.
Пристроенный к сараю дровник на даче
Для его постройки понадобились всего две трубы, которые вкопали в землю и забетонировали. К ним потом прикрепили два бруса. Аналогичные брусья укрепили на стене сарая.
Между ними набили доски, закрепили крышу (обрезки профлиста). Чтобы дрова не лежали на земле, поставили кирпичи и на них — лист старой фанеры. Для изготовления такого навеса использовать можно остатки после строительства или купить поддоны и разобрать их. Как раз подходят по размеру.
По такому же типу сделан второй навес. Он еще дополнительно разделен на сектора, в которых лежат разные по размерам дрова. Фундамент для этого сооружения тоже не делали, убрали плодородный слой, засыпали песком, утрамбовали. Положили тротуарную плитку. На нее — бруски, которые служат опорой для поперечин, на которых лежат дрова нижнего отсека. Получилось аккуратно.
Небольшая дровница для дачи с разделением на сектораОтдельно стоящий
Тут необычно организован уклон кровли: передние стойки сделаны выше, в этом ничего необычного нет. Но в них вырезаны пазы, которые удерживают стропила односкатной крыши. То есть крыша опирается не на верхнюю обвязку, как обычно, а на боковые стойки.
При небольшой снеговой нагрузке такая конструкция вполне жизнеспособна, при обильных снегах крыша вряд ли выстоит.
Возможно, вам будет интересно прочесть «Как сделать беседку из дерева». Ее можно построить в том же стиле, что и дровяной сарай, так что все будет смотреться как единый ансамбль.
О том, каким может быть деревянный забор, прочесть можно в этой статье.
Как сложить круглую поленницу
Неоднократно, наверное, видели дрова, сложенные в цилиндрической формы поленницы (или фото). Они и смотрятся хорошо, и, что важнее, сохнет в них древесины быстро.
Круглые поленницы для сушки дровВсе очень просто, но без знания секрета хорошо сделать не получается. ниже фотоотчет, на котором показано пошагово, как складывать круглую поленицу из колотых дров.
Сначала вкапываете надежно закрепляете шест около 2 метров высоты.
Вокруг выкладываете чурки небольшого диаметра. Расстояние до центра — двукратная длина дров (если дрова 40 см, до центра около 80 см).
Далее выкладываете колотые дрова. Одним концом они опираются на выложенные чурки, вторым лежат на грунте. Укладываете так, чтобы по внутреннему краю все лежало почти впритык (с небольшими щелями). По наружному получатся зазоры. Это нестрашно — в них уложится второй ряд.
Выкладываете первый рядВторой ряд выкладываете на первый. Стараясь по возможности заполнить зазоры. Вокруг шеста начинаем складывать плотно дрова стоя.
Продолжение: выкладываем второй ряд, начинаем заполнять серединуПродолжаем укладывать дрова по кругу и заполнять серединуКак только заметили, что наружный край дров стал клониться вниз, по кругу выкладываете ряд, который приподнимет их. Потом продолжаете складывать дрова также: по кругу до половины высоты дров (20 см), потом заполняете середину. Второй ряд в середине не просто ставится, а втыкается в щели.
Старайтесь куски древесины вставлять плотно.
Тот же процесс можно повторить с большим количеством дров. Укладывают два и даже три ряда по кругу. Размеры подобных дровников бывают огромными. В фотогалерее пример того, как складывать большую поленицу.
Раз уж вы взялись за обустройство участка, возможно вам пригодится статья о том, как сделать дорожки (из того же дерева, например) или скамейки-лавочки.
Идеи в фото формате
- Необычная конструкция — финский дровник
- Чертеж небольшого дровяника на один рад поленьев
- Такую сделать проще простого. И в дом занести можно
- Красивая дровница. Прямо избушка для дров))
- Легкая конструкция для небольшого количества древесины
- Эти треугольные сооружения — тоже дровники
- Два забетонированных бревна возле стены.
Вот и все устройство
- Вариант большого прямоугольного дровника с двускатной крышей
- Большой свес крыши защитит от дождя.Главное, чтобы ветром кровлю не оторвало
- Интересно и стильно: можно поставит возле камина или печи
- Из бревна получается красивая дровница, но стоит она…
- Каркас из металла. Не хватает жесткости (укосов), потому все повело
- Это вариант с досками, закрепленными по типу жалюзи
Все эти модели легко строятся, некоторые — лишь модификация описанных выше. Надеемся, вам проще теперь построить дровяник своими руками.
Дровник для дачи своими руками: фото, как сделать, чертежи
Фото дровника для дачи своими руками часто ищут дачники, собирающиеся загородом зимовать.
Однако дрова нужны не только в холодное время года. Летом на даче жарят шашлык, готовят в русской печи, прохладными вечерами топят камин. Чтобы для всех потребностей под рукой всегда были сухие поленья, заготовку дров начинают с возведения дровника.
Содержание
- Правила выбора места
- Виды конструкции
- Отдельно стоящее сооружение
- Дровник, прилегающий к стене здания
- Навес для дров
- Мобильный мини-дровник
- Материалы изготовления
- Как сделать дровник для хранения дров
- Чертеж дровника
- Заключение
Правила выбора места
По сути, дровник для дачи своими руками – это небольшой сарайчик или навес, рассчитанный для определенного количества поленьев. При поиске места, учитывают габариты сооружения, его будущий внешний вид, для каких целей нужны дрова:
- Для шашлыков потребуется на даче небольшое количество поленьев. Дровник разумно разместить поближе к мангалу, но выдержать безопасное расстояние во избежание загорания от искры.
Если зона отдыха расположена на обозреваемом месте дачи, важно позаботиться о красоте сооружения. - Не эстетично располагать дровник посреди участка дачи. Даже если постройка красивая, украшена коваными элементами – ее место вблизи дома или хозяйственного помещения.
- Заготовка дров для зимнего отопления требует возведение на даче большого сарая. Сооружение займет приличное место, вдобавок затенит прилегающий участок. Большинство огородных и садовых культур в тени не растут. Под сарай лучше отвести участок, не используемый для огородничества.
- К дровянику на даче всегда должен оставаться свободный подход. Важно предусмотреть твердое покрытие, чтобы во время дождя не бродить по грязи.
Совет! Дорожку к дровянику можно выложить из камня, кусков старого кирпича, вымостить щебнем.
- Дровник уберегает поленья не только крышей от дождя и снега. Снизу дрова должны быть защищены от талой и сточной воды. Конструкцию устанавливают на возвышенном участке дачи, где отсутствуют скопления луж после дождя или таяния снега.
Оптимально выбрать площадку с твердым покрытием, имеющим небольшой уклон. - Неплохо на даче расположить дровяник в удобной зоне для подъезда транспорта. Возможно, поленья придется загружать в машину при выезде на природу или разгружать, если заготовка дров ведется в лесу.
При выборе места важно учесть, что удобно на даче расположенный дровник уменьшит трудозатраты, связанные с заготовкой и складированием дров.
Виды конструкции
Конструкция дровяника зависит от места его расположения. Для уличного сооружения обязательно наличие крыши. Существуют переносные дровники, устанавливаемые внутри дома возле камина или печи. Для таких конструкций крыша не нужна. Упор делают на эстетику. Выбрать подходящий тип конструкции для дачи поможет фото дровников своими руками с кратким описанием предназначения.
Отдельно стоящее сооружение
Для хранения большого количества дров возводят дровник в виде сарая или навеса. Сооружение является отдельно стоящим.
Обычно дровяник удаляют в укромный уголок дачи подальше от жилых и хозяйственных зданий. Во-первых, такой выбор объясняется пожаробезопасностью. Не желательно хранить большое количество сухих дров вблизи дома. Во-вторых, отдельно стоящий дровник не отличается эстетичным внешним видом, портит архитектурный ансамбль дачи.
Бюджетным вариантом для дачи отдельно стоящего дровяника считается навес. Конструкция состоит из столбов и шиферной крыши. Все боковые и задняя стенка дровяника сбита из досок. Для проветривания оставлены щели шириной до 10 см. Спереди к поленьям оставляют открытый доступ. Если зашить доской переднюю часть навеса и установить двери, то получится полноценный сарай. Внутри дровяника обязательно обустраивают решетчатый пол, приподнятый от земли минимум 20 см.
Дровник, прилегающий к стене здания
Дровник маленького размера можно пристроить к стене жилого дома или сарая. Здесь уже стоит подумать об эстетике сооружения, чтобы не испортить архитектурный ансамбль дачи.
Крышу желательно покрыть аналогичным материалом, из которого сделана кровля основного здания. Так как необходимость в задней стене пристройки отпадает, остается установить только два боковых щита и сбить решетчатый пол дровяника.
Важно! Дровяник нельзя на даче пристраивать к деревянному зданию. Во-первых, такое соседство считается пожароопасным. Во-вторых, в поленьях живут жуки точильщики. Насекомые переберутся на деревянную стену сарая или жилого дома и уничтожат ее.
Навес для дров
Для навеса характерно наличие крыши, поддерживающих опор и решетчатого пола. Дровник может стоять на даче отдельным сооружением или пристроенным к дому. Навес подходит для складирования большого количества поленьев. Такие конструкции разделяют на секции с перегородками. Недостатком открытого навеса является незащищенность дров сбоку от задувающего ветром дождя или снега.
Мобильный мини-дровник
Переносной дровник востребован, если на даче есть камин. Можно его поставить возле печи.
Назначение конструкции – складирование малого количества поленьев для текущего пользования. Дровянику не нужна крыша, так как он постоянно находится внутри дома. При изготовлении конструкции упор делают на красоту, малый вес, удобство перемещения. Эстетично смотрятся изделия из ковки или древесины.
Материалы изготовления
Чаще всего собирают своими руками дровники для дачи деревянные из-за простоты обработки материала и его доступности. Стойки изготавливают из бруса или необработанного кругляка. На стены и пол дровяника идут доски. Они могут быть обрезные и не обрезные. От этого показателя зависит только эстетичность дровника. Внутренние перегородки больших сараев или навесов устанавливают из фанеры, плит ДСП, ОСБ.
Важно! При возведении на даче деревянного дровника все элементы конструкции обрабатывают пропитками, защищающими материал от сырости, плесени и жуков точильщиков.
Капитальную постройку на даче осуществляют из кирпича, шлакоблоков, металла, газоблоков.
Такой дровник считается полноценным сараем, требует возведение фундамента, что требует больших затрат.
Для крыши дровяника самый распространенный материал – асбестоцементный шифер. Подойдет профнастил, металлочерепица, но большие затраты неразумно делать на дорогостоящую кровлю, если дровник расположен в укромном уголке дачи. Маленькие навесы накрывают поликарбонатом или пластиковым шифером.
При изготовлении на даче дровяника, материалы можно комбинировать. Отличным вариантом является металлический каркас, обшитый досками или фанерой. Деревянную постройку на проблемном участке дачи поднимают с помощью бетонного или шлакоблочного фундамента.
Как сделать дровник для хранения дров
Собрать на даче маленький навес для хранения поленьев способен любой человек. Если предполагается заготовка большого количества дров на зиму, потребуется возводить капитальный дровник, лучше всего на фундаменте.
Работы начинают с выравнивания площадки. Под дровником не должна стоять вода.
Основание делают прочное. Можно выложить плитами. Лучший вариант – послойно толщиной 25 см насыпать песок и щебень. В качестве основания укладывают бетонные блоки.
Для защиты деревянного каркаса дровника от сырости на бетонные блоки укладывают куски рубероида. Каркас начинают собирать с нижней обвязки. Брус сечением 100х100 мм соединяют гвоздями, усиливают монтажными уголками. В итоге получается прямоугольник. Обвязку свободно укладывают на бетонные блоки. При желании конструкцию можно закрепить анкерными болтами.
По углам нижней обвязки ставят из аналогичного бруса стойки. Задние опоры дровяника делают короче передних, чтобы получился скат крыши. Ровность стоек проверяют уровнем или отвесом. К нижней обвязке столбы крепят монтажными уголками и саморезами. После угловых опор ставят промежуточные стойки. Дополнительно предусматривают два столба, образующих в дровнике дверной проем.
После установки всех стоек из доски толщиной 50 мм собирают верхнюю обвязку дровника.
Должна получиться рама, скрепляющая верхушки опор.
Поперек каркаса дровника к верхней обвязке прибивают гвоздями балки из доски толщиной 50 мм. Элементы располагают шагом около 50 см. Спереди и сзади оставляют выступ балок около 35 см, образующий свес. Он нужен для защиты стен дровяника от дождя.
Поперек балкам крепят обрешетку. Доску используют толщиной 25-30 мм. Шаг укладки зависит от кровельного материала. Если выбран профнастил, то придется дополнительно положить рубероид. Гидроизоляция предотвратит попадание конденсата на сухие поленья. Под рубероид обрешетку делают как можно плотнее, чтобы не было провисания материала.
Обшивку стен и настилку пола дровника осуществляют доской толщиной 30-40 мм. Хранящиеся на даче поленья должны хорошо проветриваться. Пол укладывают со щелями 3 см. Шаг досок обшивки стен дровяника не превышает 10 см. Большие щели невыгодны из-за задувания ветром в дрова снега, капель дождя.
Готовый дровник подвергают окраске.
Первым делом древесину пропитывают защитными пропитками. Если постройка стоит на видимом участке дачи, ей придают эстетичный вид окрашиванием лаком с добавлением морилки.
После высыхания краски дровник готов к приемке дров.
На видео продемонстрирован еще один пример дровника:
Чертеж дровника
Перед началом возведения на даче сложной конструкции надо составить чертеж дровника своими руками, упрощающий дальнейшие работы. Вдобавок схема поможет рассчитать необходимое количество материалов, визуально представить будущее строение.
Если человек не силен в составлении чертежей, готовые проекты всегда можно найти в интернете. Простейший пример навеса с двускатной крышей показан на фото. Размеры дровяника при желании легко изменить под личные предпочтения.
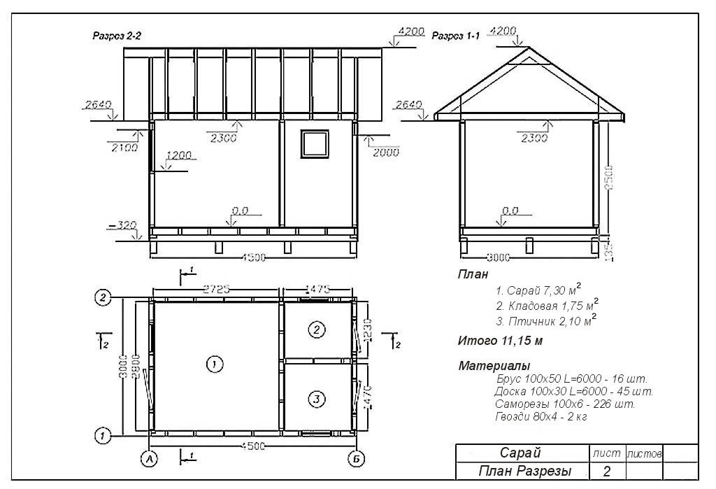
Следующий чертеж подойдет хозяину, желающему выстроить на даче капитальный дровник в виде сарая.
По сути, проект представляет собой целый хозблок. Кроме дров, в таком сарае можно организовать мастерскую, птичник, кладовую.
Заключение
Фото дровника для дачи своими руками является только наглядным пособием, дает представление о будущем виде конструкции. Все нюансы строительства придется продумывать самостоятельно с учетом конкретных требований.
Идеи стеллажа для дров своими руками с гениальным дизайном
By Simona Ganea | Опубликовано
Купить
Стеллажи для дров в наши дни очень редко становятся предметом обсуждения, но это не значит, что они все еще не нужны. На самом деле, очень важно иметь правильный и практичный способ хранения всех дров , если у вас во дворе есть дровяной камин, печь или костровая яма. Есть много разных способов , чтобы обойти это. Посмотрите некоторые из наших любимых идей ниже.
Как выбрать подставку для дров, соответствующую вашим потребностям
Предположим, что у вас все на месте и вы готовы принести домой новую стопку дров . Это означает, что вам нужен правильный способ хранения, и стеллаж для дров может вам в этом помочь. Но если вы никогда не покупали его раньше, как узнать, какие характеристики для вас наиболее важны? Обратите внимание на следующее:
- Как всегда, когда вы покупаете практически любой товар, вам нужно учитывать, из каких материалов он сделан, потому что каждый материал имеет свой собственный набор свойств, которые могут определить, подходит ли вам этот продукт. Полки для дров обычно изготавливаются из дерева, пластика или металла. Некоторые из лучших стеллажей для дров сделаны из кованого железа, которое очень тяжелое, но также является одним из самых прочных вариантов. Он устойчив к атмосферным воздействиям и остается прочным в течение многих лет, даже если он постоянно находится на открытом воздухе.
Другой распространенный материал — стальные трубы, которые обычно имеют порошковое покрытие. Это делает стальные трубы более прочными, но не такими прочными, как трубы из кованого железа. - Далее вам нужно подумать о том, где вы собираетесь использовать полку для дров. Вы заметите, что многие стойки предназначены для использования как внутри, так и снаружи, но вам необходимо убедиться, что наружные блоки устойчивы к атмосферным воздействиям. Опять же, лучшим выбором для улицы являются стеллажи из стали с порошковым покрытием или кованого железа, потому что они устойчивы, а также могут быть декоративными, если вы когда-нибудь захотите занести их в помещение. Некоторые модели созданы специально для использования в помещении не только потому, что в них не используются атмосферостойкие материалы, но и потому, что они имеют функции, которые действительно полезны внутри (например, крючки, которые помогают вам держать инструменты для камина).
- Как вы уже знаете, дрова, подходящие для топки в печи или камине, должны быть должным образом высушены и выдержаны, а это значит, что к ним должен быть обеспечен достаточный приток воздуха.
Следовательно, это означает, что лучшие стеллажи для дров открываются спереди или сзади, чтобы облегчить поток воздуха для лучшего выдерживания дров. - Затем вам следует подумать о размере и вместимости стойки для дров, которую вы собираетесь приобрести. Если вы только изредка дровите дрова, вам, вероятно, не нужна большая стойка. То же самое касается людей, которые используют стойку в помещении: вы не хотите, чтобы она занимала слишком много места. Если вы используете камин или печь в качестве основного источника тепла, вам нужно, чтобы стойка могла вместить как можно больше дров.
- Портативность также является важным фактором, который вы можете не учитывать, пока не придет время переносить дрова на стеллаж. Ищите модели со съемными стропами, потому что они помогут вам быстрее их наполнить. Эти стропы должны быть изготовлены из нейлона или сверхпрочного брезента для большей прочности.
Вообще говоря, стойка длиной четыре фута вмещает около ¼ шнура для дров.
Чтобы избежать догадок, связанных с вместимостью стеллажей, многие из них предварительно оценивают количество древесины, которое они могут хранить.
Вы можете приобрести пожарные стеллажи вместимостью от 1/8 шнура до одного шнура, а также промежуточные стеллажи вместимостью от 1/4 до 3/4 шнура. Если вы не используете так много дров, вы всегда можете выбрать стеллажи меньшего размера.
Сколько вмещается стеллаж для дров?Естественно, ответ может варьироваться в зависимости от того, где вы живете, как вы используете дрова и сколько у вас свободного места. Ниже приведены некоторые общие принципы, которые помогут вам выбрать идеальный стеллаж для бревен, отвечающий вашим потребностям.
Форма
Стеллажи для бревен бывают разных конструкций, и очень важно помнить, что каждая форма может вмещать различное количество бревен. Стеллажи с круглыми элементами, такие как круглые или серповидные стеллажи, не будут вмещать такое же количество древесины, как стеллажи прямоугольной или квадратной формы.
Емкость
Дрова продаются шнурами, поэтому очень важно понимать определение шнура. Шнур определяется просто как 128 кубических футов сложенных дров. Прямоугольная стойка длиной от 45 до 48 дюймов вмещает 1/4 корда дров. Нормальная длина шнура 1/2 составляет от 87 до 9.6 дюймов, тогда как для 1 шнура требуется 16 футов.
Хотя это обычные спецификации, некоторые производители включают дополнительную длину. В то время как большинство стеллажей для дров, предназначенных для хранения 1/4 шнура, имеют длину 4 фута, некоторые имеют длину 5 футов.
Их стоит поискать, потому что они могут помочь вам правильно хранить небольшое количество дополнительных дров. И, если вы похожи на большинство людей, вам так понравится величественное пламя дров, что вы, вероятно, будете использовать больше дров, чем планировали.
Как сделать стеллаж для дров из 2×4? Вы можете построить свою собственную стойку для дров примерно за 40 долларов, и вот руководство, которое научит вас, как это сделать.
Что вам понадобится:
- (6) 2×4 деревянные доски, 8 футов каждая, обработанные
- 3,5-дюймовые винты для внешней отделки
- 2,5-дюймовые наружные винты
- Ударный шуруповерт 70075 Отрезная пила
- Отрезная пила
- Рулетка
- карандаш
Шаг первый
Начните с резки деревянных досок, чтобы перед тем, как приступить к проекту, у вас были: две оригинальные доски длиной восемь футов, четыре части длиной четыре фута, четыре части длиной 17,5 дюймов, две части. длиной 12 дюймов, четыре куска длиной девять дюймов, четыре куска длиной восемь и ¾ дюйма. У кусков длиной 17,5 дюймов стороны должны быть обрезаны под углом 45 градусов.
Шаг второй
Найдите ровную поверхность, на которой вы будете собирать деревянные детали.
Шаг третий
Поместите восьмифутовые бруски на расстоянии около 12 дюймов друг от друга и соедините их на концах с помощью ранее вырезанных 12-дюймовых деревянных брусков.
Прикрепите их с помощью 3,5-дюймовых винтов и ударного ключа.
Шаг четвертый
Возьмите четырехфутовый кусок и поместите его вертикально на один из углов этой ранее построенной рамы. Используйте два 2,5-дюймовых винта, чтобы закрепить его на месте. Проделайте то же самое с остальными тремя углами.
Шаг пятый
Берите свои восемь кусочков размером ¾ дюйма. Возьмите один из них и поместите его прямо за вертикальными опорами, чтобы он оставался внутри рамы. При правильном размещении он создаст карман, который будет поддерживать вертикальные деревянные детали. Закрепите эти части на месте с помощью 3,5-дюймовых винтов, по два с каждой стороны. Поместите еще восемь ¾-дюймовых кусочков на другой конец, и у вас должно остаться еще два таких куска.
Шаг шестой
Девятидюймовые детали будут использоваться на полпути к вертикальным опорам, поэтому возьмите измерительную ленту и отметьте середину этих столбов, чтобы вы могли соответствующим образом разместить эти скобы.
Используйте 3,5-дюймовые винты, чтобы установить эти части на место. Сделайте то же самое с другой стороны.
Шаг седьмой
Используйте остальные восемь 3/4-дюймовых деталей в качестве распорок между длинными полозьями. Отметьте 40 дюймов с помощью карандаша с каждого из двух концов, и именно там эти детали будут ввинчены. Они будут служить опорными частями, и вы разместите их в углах вашей стойки для дров. Закрепите их на месте с помощью винтов и ударного ключа.
Могут ли дрова попасть под дождь?Целью процедуры приправы для дров является снижение содержания влаги в древесине до уровня, который не приведет к неэффективному горению при использовании в камине или каминной топке.
В соответствии с рекомендациями Агентства по охране окружающей среды идеальный диапазон влажности древесины, предназначенной для разведения огня, составляет от 15 до 20 процентов.
Влажность свежесрубленной древесины может быть значительно выше 20 процентов, что требует ее сушки в течение длительного времени, чтобы снизить уровень влажности.
Крайне важно, чтобы дождь не попадал на древесину во время процесса приправы, чтобы обеспечить успешную приправу.
Если древесина постоянно подвергается воздействию влаги, она может дольше выдерживаться и даже может начать гнить, прежде чем успеет высохнуть. Во время процесса выдержки древесину следует хранить под каким-либо покрытием, чтобы она не намокла.
Если древесина была предварительно тщательно выдержана, штабелирование влажной древесины в соответствующих сухих условиях является наиболее эффективным методом ее просушки. Цель состоит в том, чтобы сохранить дрова сухими, если они недавно попали под дождь. Если дрова находились под непрекращающимся дождем в течение длительного периода времени, они могут начать гнить и стать менее эффективными при попытке разжечь огонь.
Какие дрова лучше всего топить? Плотность и сухость — две характеристики лучших дров для сжигания. Более плотная древесина горит более эффективно, потому что дает огню больше топлива для потребления.
Однако, если древесина высокой плотности слишком влажная, огню потребуется дополнительная энергия, чтобы высушить ее. В результате она будет гореть менее ярко и в течение более короткого периода времени, чем если бы древесина была более сухой. В результате для оптимальной работы дров требуется высокая сухость и плотность.
Дрова длительного горения
Если вы хотите увеличить время горения, вы должны сначала определить, являются ли дрова мягкими или лиственными. Различие между этими двумя основными категориями заключается в породах деревьев, из которых они происходят.
Лиственные породы — это деревья, которые сбрасывают листву зимой и включают такие популярные породы, как ясень или дуб. С другой стороны, хвойные породы получают из вечнозеленых деревьев, таких как ель или сосна.
Из-за более медленного роста лиственных пород по сравнению с хвойными, их древесина более плотная и, следовательно, горит дольше. Таким образом, даже если некоторые сорта хвойной древесины воспламеняются быстрее, чем лиственные, пламя, как правило, гаснет быстрее, поскольку оно прожигает менее толстый материал.
В результате может быть разумным разжечь огонь, используя хвойную древесину, но поддерживать его с помощью твердой древесины.
Наконец, твердая древесина обеспечивает более длительное время горения за ваши деньги. В результате, если есть возможность, мы всегда предпочитаем твердую древесину мягкой.
Дрова горячего горения
Кроме того, хвойная древесина не горит так сильно, как твердая древесина. Однако не все лиственные породы выделяют одинаковое количество тепла. Например, гикори, ясень или дуб имеют более высокую теплоту сгорания по сравнению, например, с грецким орехом. Однако все эти породы дерева имеют более высокую теплопроводность, чем хвойные породы, такие как кедр и сосна.
Мы определяем количество тепла, выделяемого различными видами древесины, используя единицу измерения, называемую БТЕ (сокращение от британской тепловой единицы). Управление энергетической информации США определяет БТЕ как количество тепла, излучаемого одной спичкой. Для сравнения, один корд (эквивалент 128 кубических футов) древесины дуба содержит около 29 миллионов БТЕ.
Чисто горящие дрова
Что хорошего в долго горящих горячих дровах, если они не горят полностью? Чтобы оправдать потраченное время и деньги, древесина должна гореть эффективно и выделять мало дыма. Самый простой способ добиться этих преимуществ — правильно сжечь сухие дрова. Для чистого горения ваши дрова должны иметь влажность менее 20 процентов. Все, что выше 20 процентов, трудно зажечь, неаккуратно сжечь и дымить.
Приправа – это метод уменьшения содержания влаги в дровах. Приправьте дрова, дав им высохнуть в течение 6-12 месяцев после распила. Сложите его в сухом, хорошо проветриваемом помещении. Древесина с приправами только делает ее такой сухой. Обычно это означает, что древесина близка, но не ниже 20-процентного уровня. Таким образом, ожог будет не таким чистым, как мог бы быть.
Мы предпочитаем высушенные в печи дрова для наиболее чистого горения. Сушка древесины в печи ускоряет и улучшает выдержку. Вместо того, чтобы ждать месяцами, пока древесина высохнет, она может быть готова всего за несколько часов.
Регулируемая среда печи легко снижает содержание влаги до уровня ниже 20 процентов.
Обеспечивает максимально чистое горение высушенных в печи дров. Низкий уровень влажности обеспечивает чистое горение. Кроме того, древесина свободна от таких дефектов, как плесень, вредители и насекомые.
В заключение, некоторые из лучших дров для сжигания включают белый дуб, красный дуб, сахарный клен, железное дерево, яблоко и американский бук.
Сколько стоит деревянная веревка?В зависимости от того, где вы живете, расщепленный и выдержанный шнур из твердой древесины может стоить от 120 до 180 долларов. Тем не менее, многие люди могут ожидать, что заплатят больше, особенно если вы подождете до зимы, чтобы запастись дровами. В некоторых районах США цены могут достигать от 220 до 400 долларов за шнур.
13 Практичные идеи стеллажей для дров
Стеллаж для дров на колесах
Очень красивая и простая идея стеллажа для дров. Вы можете сделать что-то подобное из деревянных поддонов, чтобы сэкономить деньги или если вам нравится внешний вид переработанной древесины.
Установите ролики на основание, чтобы вы могли легко перемещать стойку без особых усилий. Вы можете найти более подробную информацию об этом проекте на thewoodgraincottage.
План простой деревянной полки
Точно так же эта полка для дров имеет очень простую базовую конструкцию и ее легко построить. Планируйте размеры в зависимости от размера бревен. Вы можете использовать несколько простых деревянных досок 2 x 4 и несколько жестких соединителей для сборки рамы. Этот немного приподнят над землей, что помогает сохранить древесину сухой и более доступной. Проверьте ana-white для более подробной информации.
Цементные шлакоблоки и дерево
Для этой самодельной подставки для дров, представленной в инструкциях, вам даже не понадобятся инструменты. Просто возьмите несколько бетонных блоков и поместите их на устойчивую поверхность отверстиями вверх, а затем поместите бревна так, чтобы они проходили через блоки с каждой стороны. Добавьте несколько досок в отверстия, и вы получите очень простую и удивительно прочную подставку для дров.
Стальные трубы, дрова
Если вам нравится промышленный вид, подумайте о том, чтобы построить стеллаж для дров из труб и фитингов. Этот, представленный в инструкциях, довольно особенный. Он сделан из двух оснований для ног от батута плюс 8 прямых секций для ног, а также из нескольких труб и дерева. Это показывает, что вы можете найти способы перепрофилировать практически все.
Подставка для дров из маленьких труб
Вот еще одна идея металлической подставки, на этот раз сделанной только из труб, соединений и ножек. Собирать эту подставку для дров очень похоже на сборку пазла. как видите, он довольно маленький, а это значит, что он поместится практически где угодно. Посетите imgur и узнайте все подробности об этом проекте, а также несколько полезных советов.
Табурет
Еще одна крутая идея — сделать из бетона подставку для дров. Чтобы успешно построить что-то подобное, вам понадобится форма для заливки бетонной смеси. Нам нравится сочетание бетона и дерева, представленное на diypete, а также компактная форма стойки.
Его можно использовать как приставной столик, если вы решите поставить его рядом с камином.
Шлакоблоки
Этот стеллаж для хранения дров был изготовлен из трех шлакоблоков, шести досок 2×4 и трех кедровых штакетников. Каркас скрепляется шурупами и гвоздями. Это недорогой проект, который ориентирован в основном на функциональность, но даже в этом случае он не выглядит плохо. Вы можете найти более подробную информацию об этом на bbq-brethren.
Изогнутая древесина
Что, если бы вы построили стеллаж для дров из дров? Это было бы круто. Очевидно, что древесину нужно распилить и отшлифовать, но это должно быть довольно весело. Нам очень нравится этот дизайн от instructables, потому что он имеет два изогнутых края, которые придают ему очень элегантный вид.
Скамейка для костра и полка для дров
Место для хранения дров для этой ямы находится прямо под скамейкой. Это замечательная идея и отличный способ сэкономить место и в то же время быть практичным.
Кроме того, дрова выглядят довольно красиво внутри. Это добавляет некоторую текстуру и узор ко всей этой установке. Узнайте больше обо всем этом проекте в инструкциях.
Открытый сарай для хранения
Если вы планируете хранить много дров, может быть, вам хватит на всю зиму, то небольшого стеллажа точно будет недостаточно. Вместо этого вы могли бы построить большую конструкцию из дерева и, возможно, дать ей крышу, чтобы дерево оставалось сухим. Это будет довольно сложный проект, поэтому обязательно загляните в домик на углу, чтобы узнать все подробности.
Бетонное хранилище
Этот бетонный стеллаж для дров выглядит великолепно. Это очень простой проект, и дизайн не совсем сложный, но в нем есть чистая и естественная простота, которая действительно выделяет его. Рассмотрите что-то подобное для вашего уличного камина или ямы для костра, если она у вас есть. Идея исходит от welke.
Минималистская рама A
Поскольку вы можете придать своей подставке для дров любую форму, подумайте о чем-то более необычном.
Допустим, вы строите небольшой, но высокий стеллаж и даете ему небольшую крышу, как у миниатюрного домика. Это выглядело бы прекрасно. Мы пришли к этой идее после того, как проверили проект на внутреннем языке.
Хранение дров, прислоненное к стене
Если вы не хотите, чтобы ваша полка для дров занимала место на полу, возможно, вы могли бы найти способ установить ее на стене. Кроме того, вы можете выбрать компактный дизайн, который не слишком выпирает, позволяя камину быть в центре внимания. Возможно, вам подойдет этот проект от thisminimalhouse.
Лучшие идеи стеллажа для дров
Стеллаж для дров
Наш первый выбор — этот стеллаж для дров предназначен для хранения разного количества деревянных бревен, в зависимости от того, какой размер вы выберете. На выбор предлагается 7 различных размеров, самый маленький из которых имеет размеры 36″ В x 36″ Ш x 10″ Г, а самый большой — 48″ В x 192″ Ш x 14″ Г. стальная рама с трубами 16-го калибра, а также с верхним покрытием из материала, предназначенного для предотвращения намокания дров под дождем.
Стеллаж для дров Pleasant Hearth
Далее у нас есть стеллаж для дров, который имеет довольно простую конструкцию, что делает его пригодным для использования как в помещении, так и на улице. Он сделан из стали и имеет общий вес 90,24 фунта, что делает его более портативным по сравнению с некоторыми другими металлическими стойками, которые мы видели. Крышка, расположенная на верхней стороне стойки, позволяет легко поднимать и перемещать ее по своему усмотрению.
Стеллаж для дров из 5 предметов
Перейдем к более элегантному стеллажу для дров , дизайн которого достоин того, чтобы его можно было увидеть в помещении. Помимо самой стойки, вы также получите 4 удобных инструмента для камина: лопату, метлу, крюк и пару щипцов. Все это можно хранить на крючках, расположенных по бокам стеллажа, поэтому они всегда будут у вас под рукой, и вам не придется оставлять их на полу или приобретать для них еще одну вешалку отдельно. Стойка изготовлена из качественного кованого железа и имеет винтажный дизайн, который сможет найти свое место практически в любом интерьере.
Стеллаж для дров Beebe
Этот стеллаж для бревен разработан для использования на открытом воздухе, поскольку он довольно большой и обладает функциями, необходимыми для стеллажа, который должен выдерживать погодные условия. Эта стойка для дров, изготовленная из стали с эмалированным покрытием, обеспечивает достаточно места для хранения примерно одной лицевой корды дров, а крышка позволяет легко защитить дрова, поскольку она полностью опускается, закрывая всю кучу.
Малый стеллаж для бревен
Перед вами еще одна дровница Приятный очаг , предназначенная для использования в помещении. Он весит чуть более 8 фунтов, так что это определенно тот продукт, который вы можете перемещать, если это необходимо. Он изготовлен из стали и имеет черную отделку, а его современные линии и спящие линии прекрасно впишутся в большинство интерьеров.
Стеллаж для дров Rasen
Если вам нужна более элегантная стеллаж для дров , обратите внимание на эту модель.
Он изготовлен из качественного металла и имеет красивую бронзовую отделку с элегантными деталями, благодаря которым он достоин того, чтобы его поставили рядом с камином. Поверхность с порошковым покрытием обещает дополнительную долговечность, а небольшой размер идеален, поскольку не занимает слишком много места. Он весит 12 фунтов, так что это не самый легкий вариант, который мы видели, но его не так уж сложно поднимать и перемещать.
Стеллаж для дров Ramiro Rustic
Стеллаж для дров Millwood Pines () может понравиться не только благодаря уникальному дизайну. Он имеет стальную конструкцию с порошковым покрытием, устойчивую к ржавчине и ультрафиолетовому излучению, поэтому он подходит для использования на открытом воздухе, если это то, что вы ищете. Нам нравится тот факт, что бронзовая отделка стойки очень напоминает дерево, что придает ей более интересную визуальную привлекательность. Он весит почти 20 фунтов, так что это определенно не тот продукт, который можно было бы легко перемещать.
У него есть деревенский акцент из-за его старинного вида, и мы могли полностью увидеть, как его используют на открытом воздухе, рядом с костром.
Простая подставка для дров
Еще одна переносная стальная подставка для дров, сделанная хорошими ребятами из Pleasant Hearth , вот эта. Благодаря весу 8,58 фунтов и двум петлям, расположенным на боковых стенках стойки, вам будет довольно легко носить его с собой. Это может быть не лучший продукт для использования на открытом воздухе, потому что основание изготовлено из куска древесины, который может быть легко поврежден при чрезмерном воздействии влаги.
Стойка для журналов Basics 2×4
Если вам нравится дровяной стеллаж, вы должны отметить эту опцию 2×4 Basics или t. Обратите внимание, что это не подставка для дров как таковая, а набор оборудования, который предлагает 2 скобы из смолы и оборудование, необходимое для создания вашего собственного продукта. Это означает, что вам нужно будет покупать пиломатериалы отдельно, так как страница продукта проведет вас через процесс сборки.
Он рекламируется как предназначенный для использования на открытом воздухе, но мы немного скептически относимся к тому, как долго продержатся куски пиломатериалов, если они слишком долго будут находиться под дождем. Однако он может работать в более защищенном месте, например, во внутреннем дворике или в гараже/сарае.
Стеллаж для бревен Jayton
Если вам нравятся практичные и элегантные стальные стеллажи для бревен, вам понравится тот, который мы вам покажем. Изготовленный из качественной стали и атмосферостойкой конструкции , этот тип стойки можно использовать как в помещении, так и на улице, предлагая вам конструкцию, необходимую для максимально эффективного использования этого продукта. С одной стороны стойки есть пара крючков, на которые можно повесить пожарные инструменты.
Склад оцинкованных стальных бревен
Если вы серьезно настроены инвестировать в решение для хранения дров для вашего открытого пространства, то вам нужно заглянуть в этот магазин бревен.
Это устройство с объемом хранения 55 кубических футов изготовлено из оцинкованной стали, которое предназначено для защиты вашей древесины, а также позволяет ей дышать для лучшей выдержки. Приподнятое металлическое основание предотвратит попадание дров на влажную землю, а наклонная крыша идеально отводит воду от дров.
Чертеж дров — Etsy.de
Etsy больше не поддерживает старые версии вашего веб-браузера, чтобы обеспечить безопасность пользовательских данных. Пожалуйста, обновите до последней версии.
Воспользуйтесь всеми преимуществами нашего сайта, включив JavaScript.
Найдите что-нибудь памятное, присоединяйтесь к сообществу, делающему добро.
(
105 релевантных результатов,
с рекламой
Продавцы, желающие расширить свой бизнес и привлечь больше заинтересованных покупателей, могут использовать рекламную платформу Etsy для продвижения своих товаров.