Дом с печью – проекты с печным отоплением под ключ, планировки деревенского дома, фото
проекты с печным отоплением под ключ, планировки деревенского дома, фото
14 Апреля 2018 2018-04-14
28999
Время чтения 11 минут
Прочитать позжеОтправим материал на почту
Распечатать
Нельзя просто взять и построить дом. Важно тщательно распланировать каждый этап его возведения и затраты на все материалы. Еще перед выбором плана проекта необходимо разобраться с тем, какое будет отопление. Главное, чтобы обогрев проходил быстро и равномерно. Безусловно, в доме должен быть оборудован только экономичный вариант, который сохранит деньги в холодное время года. Кроме решений с традиционным газовым или электрическим обогревом, существует проект дома с печью.

Современные русские печи из кирпича
Печь – проверенный временем способ отопить свой дом. Русская современная печь претерпела некоторые качественные изменения. Изменился материал и форма конструкции. Несмотря на модернизацию, она хорошо справляется со своей задачей. По-прежнему можно обогреть небольшое помещение благодаря правильной укладке и тщательно спланированному месту постройки. Современный кирпич способен выдерживать высокие температуры и аккумулировать жар. В итоге, даже если пламя потухнет, некоторое время стенки будут отдавать тепло, что даст возможность немного сэкономить.

Переход на новый вид поддержания комфорта довольно сложный и требует много усилий. Перед тем как определиться с окончательным результатом, важно хорошо взвесить все за и против. Нужно понять, насколько сложным может быть воздвижение конструкции и какие проблемы могут возникнуть при эксплуатации. Важно подробно изучить все плюсы и минусы, которые связаны с печным обогревом. Не помешает разобрать несколько проектов домов, в которых реализован данный вид автономного отопления. Только так можно выбрать идеальный вариант с хорошим соотношением цена-качество.
Разновидности русских печек
Практически все конструкции имеют схожий принцип, но некоторыми отличия всё же выделяются. В дом можно установить следующие виды источника тепла:
- С плитой и встроенным подтоком. Плиты могут монтироваться в основание конструкции, в классическом виде они выполняются в виде глухого пространства.
- Со встроенным камином. Такую печь можно обустроить в гостиной или в зале, ведь всегда приятно смотреть на горящий огонь.
- С топчаном (местом для отдыха). Такая печь обустроена отдельным местом для отдыха и сна, как это было в старых русских образцах. Постоянно теплая постель – лучшее лекарство для больных суставов. Именно поэтому на древней Руси было принято уступать теплое лежбище больным и пожилым людям.
- С варочной поверхностью. Незаменимая вещь в любом загородном домике. Такое устройство обеспечивает комфортный домашний климат и место для готовки еды.

Достоинства печного отопления
Главное преимущество данного вида обогрева – автономность. Теперь не нужно зависеть от центральной отопительной системы с её плановыми отключениями, поломками и недостаточным теплом. Именно твердотопливные обогреватели имеют большой спрос на современном рынке. К сожалению, актуальная реальность такова, что нормально обогреться электричеством или газом невозможно. Счета за поставку электроэнергии настолько велики, что жильцы, имеющие электрические системы нагрева, отказываются от комфортного проживания и начинают экономить. Если говорить про газ – то далеко не все жилые дома имеют газопровод.

Экономия
В России разрешили собирать сушняк, поэтому самое время закупаться твердотопливными отопительными системами. Печь сможет проработать практически на любом горючем материале – это весомый аргумент в пользу плана постройки, тем более учитывая сложное финансовое положение. Для топки вполне подойдут уголь, дерево, сухие ветки, картон и даже мазут. Все зависит от вашей фантазии и финансовых возможностей. Главное знать, что определенные материалы могут причинять неудобства в виде неприятного запаха и следов копоти.

На нашем сайте Вы можете найти контакты строительных компаний, которые предлагают услугу строительства каминов и печей. Напрямую пообщаться с представителями можно посетив выставку домов «Малоэтажная Страна».
Дополнение к интерьеру
Классическая печь может стать отличным дизайнерским решением. Сейчас классика и открытый огонь находятся в тренде. Все это присутствует в русской печке. К тому же она хорошо подчеркнет стиль деревянного дома из бруса. Создается теплая обстановка домашнего уюта. В таком помещении приятно находиться, так как чувствуешь безопасность семейного очага.

Но, несмотря на все преимущества, планировка деревенского дома с печным отоплением имеет свои недостатки. Для того чтобы понять, будет ли жизнь комфортной, важно как следует их изучить.
Недостатки печного отопления
Устанавливая печное отопление, вы столкнетесь со следующими трудностями:
- Внутри дома может собираться небольшая копоть. Подобный эффект будет при неправильном использовании устройства дымохода или некачественного топлива.
- При неправильном использовании заслонки, есть риск получения отравления угарным газом. Отравляющий газ замещает кислород, и человек просто задыхается. Такое состояние не имеет симптомов, кроме усталости и сонливости.
- Печное отопление подразумевает открытый огонь, что очень опасно, особенно для деревянного дома из бруса. Достаточно одной небольшой искры — и пожар неизбежен.
- Элементы конструкции имеют раскаленные детали, о которые очень легко обжечься. Риску подвержены все, а особенно маленькие дети.
- От активного использования, дымоход будет забиваться сажей, которую нужно прочищать. Если дымоход будет забит, то вся сажа и копоть будут оседать на мебели и стенах, которые потом очень сложно очистить.
- Нужно постоянно прочищать колосники для подсоса воздуха, поддерживающего горение. Во время чистки обычно вся окружающая поверхность покрывается небольшим слоем пепла — и внеплановая уборка становится неизбежной.

Планировка домов с печкой
Новый проект дома с печным отоплением всегда связан с принятием тяжелых решений. Перед рассмотрением конкретного плана постройки необходимо не только определиться с размером общей площади, но и обдумать количество и удобное расположение жилых комнат. Кроме того, не помешает определиться с материалом, из которого будет выполнен будущий домашний очаг.
Компактный однокомнатный домик
Постройка состоит из одной жилой комнаты размером 15 квадратов. Посередине размещается печь, рядом с которой находится кухня площадью 8 м2. Последняя отапливаемая комната – санузел. В передней части дома находится веранда.

Преимущества
- Комнаты с малой квадратурой быстро нагреваются.
- Требуется небольшое количество топливного сырья.
- Легко следить за чистотой и исправностью всего дома.
- Есть веранда, в которой можно отдохнуть в летний период.

Недостатки
- Плохо подходит для семьи из трех или более человек.
- Веранда не отапливается, а значит, не задействована в зимний период.
Двухкомнатный деревянный дом
Данный план включает в себя две жилых комнаты, санузлы и терассу. Дом имеет форму квадрата со стороной в 9 м. Печь установлена таким образом, чтобы обогревались все комнаты. В таком проекте используется дерево как основа для стен, потолка и пола. Деревянная структура не пропускает холод и хорошо сохраняет тепло.

Это может быть интересно! В статье по следующей ссылке читайте про обзор беседок с печкой и мангалом.
Преимущества
- В проекте предусмотрена сушилка в коридоре и теплая лежанка в спальне.
- Выложенная русская печь эффективно аккумулирует тепло и медленно его отдает. В паре с теплоизоляционными свойствами дерева получается экономный вариант отопления.
- Сушилка в прихожей полезна в зимнее время года. Она позволяет высушивать одежду и обувь, а также помогает сохранить тепло всего дома.
- В печи предусмотрена плита, на которой можно готовить. В летнее время можно не эксплуатировать всю систему, используя только плиту.

Недостатки
- Места по-прежнему мало.
- Нет отдельной гостиной или кухни.
Трехкомнатная планировка здания
Более серьезный проект, который рассчитан на большую семью. И хотя дом большой, грамотное расположение источника тепла сможет в равной степени согреть каждую комнату. Две спальни и гостиная имеют доступ к горячим стенкам. Единственные не отапливаемое места – кладовка и санузел. Так же, как и в предыдущем случае, кухня совмещена с залом.

Преимущества
- Много свободного места, есть отдельные спальни. Одну можно оборудовать под детскую комнату.
- Грамотное распределение рабочего пространства, нет пустых бесполезных комнат или пристроек.
- Коридор совмещен с кухней, а значит, туда будет хорошо проникать свет. К тому же такой подход визуально увеличивает объем комнаты.
- Кладовка не имеет окон и активного отопления, а значит отлично подойдет для хранения продуктов. Она может служить в качестве погреба.

Недостатки
- Санузел не отапливается. Холодная ванная или туалет могут причинять неудобства.
- Коридор не закрывается, а значит часть тепла с кухни будет уходить через входную дверь.
Это основные проекты, вариации которых обычно вмещает в себя каталог зимних домов с русской печкой. Данные постройки имеют свои плюсы и минусы. Необходимо подобрать для себя подходящий вариант. Если постройка будет соответствовать необходимым требованиям, жизнь в ней станет вполне комфортной и экономичной.
Подробнее о размещении печи в доме — в этом видео:
Основные правила эксплуатации
Печь – это сложный механизм, который требует особого ухода. Открытый огонь представляет большую опасность, особенно для деревянных построек. Именно правильный уход и соблюдение правил техники безопасности гарантируют безопасную и уютную жизнь.
Безопасность
Первое и основное правило – не оставлять открытый огонь без присмотра. Перед уходом важно убедиться, что абсолютно все угольки потушены, а вокруг нет ни одной искорки. Халатное отношение и неумелая эксплуатация печи – главная причина возникновения пожаров. Если все грамотно обустроить, то риск возникновения нежелательного возгорания практически исключен. Второе и не менее важное условие — не подпускать к системе детей. Не важно, насколько умный ребенок, он не способен дать полный отчет. Важно не оставлять детей наедине с раскаленной печью.

Для безопасности следует оббить пол в месте возможного попадания огня негорючим материалом. Обычно для таких целей используют лист тонкого металла или кафельную плитку. Также не помешает поставить ширму или защитный экран для улавливания опасных раскаленных щепок и углей.
Обслуживание
Элементы отопительной системы всегда должны быть в надлежащем состоянии. Для долгой работы без осложнений и поломок важно проводить регулярную диагностику и профилактику. В данную работу входит чистка дымохода от золы и вычищение пепла из колосников. Перед каждым отопительным сезоном важно осмотреть все элементы и, если есть неисправности, постараться их устранить.

Заключение
Воплощение такого серьезного решения, коим является постройка собственного жилья, требует больших затрат времени и сил. К сожалению, у некоторых сегодня нет возможности следить даже за созданием проекта, а о постройке уже и речи не идет. Поэтому стоит обратить внимание на дома с печным отоплением под ключ. Подобная постройка включает в себя полностью автономную работу на всех этапах строительства. Вас потревожат, когда дом уже будет полностью готов, и все, что нужно сделать, – заселиться.

Это может быть интересно! В статье по следующей ссылке читайте про постройку кирпичных печей.
Заключение
К тому же, строительство отдельного здания — довольно трудное занятие, которое требует дополнительных навыков и строительного опыта. Высокая квалификация особенно необходима в планировке здания для равномерного распределения тепла. В старые времена для сооружения русской печи нанимались специальные люди, которые точно определяли площадь здания и строили отопительную систему непосредственно в центре избы. Сегодня для этих целей пользуются услугами специального проектировочного отдела.
Прочитать позжеОтправим материал на почту
Распечататьm-strana.ru
ДОМ С ПЕЧКОЙ — блог о печах, о жизни в доме с печью и печном отоплении

В этой статье я постараюсь описать современные представления о доме с печью. Я дам много типовых планировок дома под печное отопление с описанием! Расскажу, какие тенденции есть при строительстве домов с печами.Немаловажно и то — какие печи наиболее подходящие для современного интерьера. Уже прошло то время, когда печи ставили или в дом без комнат или встраивали печь во все комнаты (в центре). Современные печи и современные дома уже не те.
Читать далееАндрей Сейма
Дом с печью
Отопление дома с печью

В этой статье я расскажу как скачать бесплатно проект печи из кирпича для дома. Печь из этого проекта мы уже неоднократно выкладывали своим заказчикам. И вот я решил прорисовать проект этой печи подробно. Я постарался вложить весь свой опыт и знания. Я максимально его упростил для кладки своими руками, чтобы было меньше «пильни» кирпича. Попытался подобрать самые доступные материалы, но не в ущерб надежности и качеству кладки.
Читать далееdomspechkoy.ru
Проекты и планировка дома с печкой 6х6, 7х7, 8х8, 6х8 и других размеров
Тот, кто надумал строить собственный дом, зачастую не знает, с чего начать. Но планировка комнат — это далеко не самый первый шаг процесса возведения жилища. Прежде чем разрабатывать проект или составлять детальный план работы, необходимо ответить на следующие вопросы: какова общая жилая площадь будущего домашнего очага; будет ли он отапливаться; если будет, то как? От ответов на них зависят последующие этапы строительства.
Планировка одноэтажного дома с печкой 6×8
Вернуться к оглавлениюСодержание материала
Проектирование
Постройка 6х6— скорее всего, дачный домик, в котором возможно проживание не круглый год, а только в теплый сезон. Поэтому его планировка проста благодаря небольшой занимаемой площади. Чертеж его также несложный из-за отсутствия отопительной системы. А для круглогодичной эксплуатации строят здания просторнее, например, коттедж 8х8 и больше. Но тогда печное отопление просто необходимо.
Однако строительная фирма может предложить проект бюджетного домика 6х6 с отопительной системой. Он будет включать общий чертеж дома и подробный план строительства. Заказчик, пожелавший иметь дом с печкой, может внести свои поправки, которые немедленно будут учтены исполнителем. Такой вариант называется строительством по индивидуальному заказу.
Клиент может заказать у фирмы не только готовый проект, но и возведение типового дома с уже решенными вопросами планировки.

Вариант внутренней планировки и расположения печки в доме
Если заказчик полностью принимает предложенный план, то строительство обойдется ему значительно дешевле.
Вернуться к оглавлениюПреимущества
Когда планировка хорошо продумана с учетом конкретной отопительной системы, то установка печи практически не зависит от стройматериала, из которого построено жилище. Она подходит как для деревянного, так и для кирпичного дома. Ее преимущество в том, что для отопления помещений всегда есть широкий выбор топлива: уголь, торф, дрова, даже картон и сухие ветки деревьев. Пользователь сам решает, чем топить, что более доступно и стоит дешевле.
Отопление электричеством обходится дороже, а газопроводом оснащены не все жилые районы.
Следующее преимущество — обогрев дома не зависит от отопительного сезона теплоцентрали, от аварийного ремонта и длительных перебоев в поставках топлива. Печь автономна, режим ее работы определяется самим пользователем, которому не нужен план сезонных отключений системы.

Планировка дома с печью 6×9 метров
Способность печи создавать уютную и комфортную атмосферу общеизвестна. Благодаря этому качеству с ней не способна сравниться никакая другая отопительная система. Приятно, сидя с книгой у печки, вдыхать запах смолистых дров и слушать их тихое потрескивание. Это напоминает далекие времена, овеянные романтикой. Кроме указанных достоинств, печку можно оборудовать так, что она станет оригинальным дополнением интерьера.
Особый шарм помещению придает русская печь. По теплоемкости с ней ничто не может сравниться. Она способна аккумулировать тепло, а потом постепенно отдавать его, поддерживая в избе постоянный уют и комфорт. В прошлом она выполняла варочно-отопительную функцию. Сегодня встречается довольно редко.
Только тот, кому по нраву деревенский дизайнерский стиль дома, решится украсить ею свои апартаменты. Правда, перевелись мастера-печники, которым не требуется чертеж для ее возведения.
Зато в последнее время проект дома с камином — обычное предложение строительных фирм. Это модное отопительное устройство обогревает, но нисколько не накапливает тепло. Используется больше как декоративный элемент.Век технического прогресса внес свои коррективы. Сегодня обычным является дом с печкой, работающей не только на твердом топливе, но и на электричестве, газе, мазуте. Но самым доступным материалом отопки по-прежнему являются дрова.
Вернуться к оглавлениюПравила установки и эксплуатации
Форму, внешний вид печи фиксирует ее чертеж. Многие стараются установить ее где-то в углу, чтобы никому не мешала, не занимала много места. Но это неглавный критерий установки. Наиболее рациональное ее расположение отражает, как правило, каждый разработанный фирмой проект дома с обогревом.
В квадратных коттеджах 6х6 с мансардой, а также в прямоугольном одноэтажном доме площадью 6х8 или в одноэтажке 6х9 предпочтительнее ставить печное сооружение в самом центре.

Подробный план дома с печью-камином 8×8
Тогда эффект от него будет наибольший, потому что оно успешно будет прогревать все помещения. Как показала практика, никак нельзя устанавливать его у наружной стены, чтобы не обогревать улицу.
Если план жилища с печной системой разработан профессионально, то после его реализации даже в двухэтажном доме круглый год будет тепло и уютно. Печку рекомендуется планировать в загородных или дачных домах не выше двухэтажных. Если на втором этаже все же прохладно, то некоторые жильцы его на зиму закрывают, живя только на хорошо отапливаемом первом.
Очень важное правило: дом с печью должен иметь эффективную теплозащиту. Иначе напрасными будут все усилия по его обогреву. А денежные средства на покупку топлива в буквальном смысле будут улетать в трубу. Не следует экономить на утеплении своего жилья. Правда, ни одна фирма не предложит проект дома без теплоизоляции. Но если его планировка с централизованной системой отопления, то такой план постройки не годится для установки печи.

Планировка финского дома с печью размером 6×6
Ошибочно думать, что если в небольшой постройке, например, 6х6, поставить мощную печь, то для обогрева достаточным будет небольшое количество дров. Это вовсе не так. Все они уйдут только на слабый ее разогрев. А комнаты останутся холодными. Каждый дом с печью оборудуется отопительным сооружением, соответствующим тому пространству, которое оно предназначено обогревать. Так, если домашний очаг 6х9, то отопительная конструкция должна быть более теплоемкой.
Еще одно важное правило, которым не следует пренебрегать, — это установка печи на отдельный фундамент. Он не может быть единым для нее и для всего дома. Это должен четко демонстрировать как общий проект жилища, так и отдельный чертеж сооружения для топки.

Подробный чертеж сруба с печкой размером 5×6
Дело в том, что грунт под различным весом проседает по-разному. Отчего печка может перекоситься, появятся трещины. В результате в комнаты будет поступать не только тепло, но и дым с угарным газом.
Зная правила установки, не следует забывать о правилах пользования. Дом с печью предполагает неукоснительное выполнение предписаний пожарной безопасности. И неважно, какой он площади, 6х6 или значительно больше. Следует помнить, что заслонку дымохода закрывают вовремя. Если угли недостаточно прогорели, помещение заполнит угарный газ. А последствия этого весьма печальны. Если закрыть ее слишком поздно, то драгоценное тепло выйдет в трубу. Ремонт печи выполняет обычно тот, кто ее устанавливал.
Вернуться к оглавлениюПланировка
Вариантов планировки одноэтажного жилища 6х6 с отопительной системой очень много. Самый распространенный план такого дома следующий:
Чертеж такого дома может меняться в зависимости от требований пользователя. Но главное — печное сооружение должно стоять в самой середине жилища и быть встроенным во внутренние перегородки. Если санузел в доме совмещен и находится через стенку с общей комнатой, то его планировка такова, чтобы его мог обогревать угол печки. Профессиональные расчеты показали, что одна печь может успешно обогревать три помещения, расположенные вокруг нее.
Для обогрева жилых площадей больше 6х8 или 6х9 может оказаться, что одна печь не справляется со своей функцией в полной мере.

Проект с планировкой дома 9×11 с печью Кузнецова
Тогда, например, деревенский дом дополнялся небольшой высокой печкой для обогрева, которая совсем непригодна для приготовления пищи. Для дачной постройки средних размеров, а тем более площадью 8 х 8 в морозную зиму она также не будет лишней.
Планировка жилища 7х7 мало чем отличается от расположения комнат дома 6х6, разве что возможностью увеличить немного площадь некоторых помещений.
Обе постройки имеют форму квадрата, а отличаются только тремя квадратными метрами. Поэтому чертеж застройки будет иметь лишь незначительные отклонения. А вот у дома 6х8 совсем иной проект, потому что, в отличие от дома 7х7, — это прямоугольное здание. Здесь можно увеличить площадь кухни, чтобы поставить печь больших габаритов. Ведь она должна обогревать жилье со стенами, не равноудаленными от нее. Чертеж строения 6х9 также мало отличается от схемы здания 6х8.
Но для жилого помещения каждый метр пространства повышает комфортность проживания. В то же время увеличивает общую стоимость строительства. Однако в любом случае печное отопление — это наиболее доступный и экономичный способ содержания частного дома в тепле.
planvsem.ru
Проекты домов с русской печью: примеры планировок с фото
Строительство собственного дома в большинстве случаев начинается с желания. А также после наступления момента, когда человек понимает, что может себе позволить построить загородную недвижимость. В таких случаях нередко имеется лишь приблизительное представление о том, как должно выглядеть внутреннее убранство строения, какие системы будут использоваться и т. д. Во время работы со строителями возникает много вопросов, один из которых касается способа отопления помещений. И если в качестве основного источника тепла выбрана печка, то как проектировать дом? Рассмотрим варианты с разными размерами печи.
Проекты домов с русской печью
Размер печки во многом зависит от планируемой величины самого дома и целей, для которых он будет использоваться. Поэтому стоит заранее определиться с основным функционалом, которым планируется наделить дом. Сейчас мы рассмотрим одноэтажные проекты домов с русской печью.
к содержанию ↑5х6 метров
Подобный небольшой домик пригоден только для временного пребывания. Пример такого строения приведен на картинке ниже. Для подобного сруба не требуется большой печи, и ее выгоднее ставить в качестве объекта для зонирования прилегающей территории.

В этом случае гораздо эффективнее оставить помещения без разделения, тогда тепло будет равномерно распределяться по необходимым местам и не задерживаться стенами.
к содержанию ↑6х6 метров
Такую планировку можно сделать для, опять же, небольшого дачного домика, куда можно заселиться летом, а при наступлении морозов уехать домой. При этом для обогрева и для готовки можно построить такую же небольшую печь. Для нее не обязательно делать лежанку, если можно обойтись европеизированным вариантом печки.

6х9 метров
Когда планируется строить дом, в котором можно небольшой семьей жить практически круглый год, стоит подумать заранее о системе отопления. Во многих регионах России использование электричества для отопления холодной зимой приведет к большим счетам за электроэнергию. При этом далеко не все районы имеют доступ к использованию газа. Плюс для его проведения потребуется специальное разрешение. Таким образом классическая русская печка становится одним из спасительных вариантов отопления.

7х7 метров
Это уже более просторный дом, на который потребуется гораздо больше тепла. Чтобы жить в таком круглый год, некоторые хотят устанавливать дизельное отопление. Однако для осуществления данной задумки потребуется создать специальное хранилище, в котором будет находиться не менее 3 тонн солярки. В то же время правильно сложенная печь поможет обеспечить дом необходимым уровнем тепла, и ни одна комната не останется холодной.

8х8 метров
Такой способ строительства обычно используется для квадратного коттеджа, только крупнее чем здание с габаритами 6х6. И в том, и в другом случае наиболее оптимальное решение — это построить дом так, чтобы печь находилась в самом центре сооружения. При указанной планировке можно рассчитывать на то, что печь сможет равномерно прогреть все прилегающие к ней помещения. Самое главное в домах с большой площадью — не ставить печку рядом со стеной, поскольку это приведет к отдаче тепла в сторону улицы, а не по направлению к жилым комнатам. Это отличный проект дома с русской печью с лежанкой.

9х12 метров
Планировка дома с русской печью 9×12 метров. В такой тип строения можно включить, например, крытую и утепленную террасу. На приведенном ниже примере без ее учета площадь дома превращается в стандартный квадрат, только со сторонами 9х9 метров. В этом случае просто можно пойти тем же способом, что и в других квадратных домах, поскольку террасы обычно не используются в качестве жилых помещений, а служат для приятного времяпровождения в летнее время.

Особенности проектирования домов с печным отоплением
к содержанию ↑Центральное размещение
Как уже упоминалось, один из наиболее приемлемых вариантов для установки печи в доме, где в отоплении не используется водяной контур, это центральное размещение. Самый распространенный способ — сделать так, чтобы печь стала единой точкой для всех смежных помещений. Очаг в таких случаях устанавливается в простенок между комнатами, а топка выводится либо на кухню, либо в коридор.

Несколько источников тепла
Еще один вариант, который предлагают использовать желающим получить дом с печным отоплением — это создание нескольких источников тепла. Минус идеи в том, что каждый из них потребуется отдельно протапливать и, соответственно, тратить больше топлива для обогрева помещений. Централизованное размещение печки решает проблему гораздо эффективнее.
к содержанию ↑Размер мечи
Еще один нюанс, который не учитывается многими заказчиками, желающими построить свой дом с печным отоплением, это размер печи. Нередко встречается ошибочное мнение, что чем больше печь, тем больше тепла от нее можно получить, и тем более эффективной она будет. С одной стороны это, действительно, так. Однако надо понимать, что чем больше печка, тем сложнее ее будет протопить до необходимой температуры. При этом она потратит гораздо больше топлива, чем маленькая.
Оптимальный выход в данной ситуации — построить небольшую печь, но такой конструкции, которая позволит дольше сохранять тепло и меньше его терять. Тогда отопление окажется более бюджетным.
к содержанию ↑Двухэтажный дом
Если приходится иметь дело с двухэтажным домом, где используется печное отопление, то здесь применим другой подход. Устанавливается специальная печная система, когда нижняя часть имеет все необходимые атрибуты — лежанку, варочную плиту и духовку — а на втором этаже применяется только отопительный щиток. Для такого дома нужны очень прочные материалы и точный расчет, чтобы кирпичная конструкция на втором этаже не привела к повреждениям дома.
В некоторых конструкциях печи можно делать так, чтобы использовалась только часть, пригодная для готовки. В этом случае отопление не производится, что очень удобно в теплое время года.
к содержанию ↑Подведем итоги
Создание домов с печным отоплением может оказаться более выгодным по сравнению с другими способами обогрева загородного дома. Однако построить жилье с подобной системой можно только с помощью специалиста, который спроектирует удобную и функциональную планировку помещений и сможет учесть основные особенности такого способа отопления.
pechnoy.guru
Проекты и дизайн интерьера домов с печью
По мере того, как города становятся всё больше, люди сильнее ощущают недостаток природы и чистого, свежего воздуха. Именно поэтому люди стремятся как можно чаще выбираться за пределы города, чтобы провести выходные в собственном загородном доме. Самым простым вариантом для строительства является летний дом, который не нуждается в утеплении стен и обустройстве отопительной системы. Но отдохнуть от городской суеты в таком домике можно лишь в летнее время года, пока идёт дачный сезон.
Всесезонный дом подходит для круглогодичного проживания, но при его строительстве приходится решать определённые, порой весьма непростые, вопросы. К примеру, обеспечение качественного обогрева жилья, которое сделает загородный дом пригодным для проживания даже в самые лютые морозы.

Содержание материала
Варианты обогрева дома
Одним из самых старых и распространённых способов обогрева жилья является использование печей и каминов
, выбор которых зависит от ваших индивидуальных потребностей. Если между обогревом всего дома и красотой и атмосферой уюта вы выбираете второй вариант, то вам следует отдать своё предпочтение камину. Он греет совсем недолго, создаваемое им тепло быстро улетучивается, но зато горит он очень ярко и красиво – идеальное решение для тех, кто любит пить чай и смотреть на огонь.Кирпичная печь для дома, в свою очередь способна хранить тепло очень долгое время. Помимо того, русская печь хороша тем, что в ней можно приготовить множество вкусных и ароматных блюд, чего в камине сделать, естественно, нельзя. Поэтому проекты дачных домов в большинстве случаев разрабатываются именно с русской печью, так как такой вариант является самым удобным и простым в исполнении.
Пример традиционной планировки дома с русской печкойНа автономную газификацию необходимо специальное разрешение, а установка жидкотопливного котла требует установки специальной ёмкости для дизтоплива, вмещающей в себя не менее трёх тонн соляры. При строительстве простого дачного домика такие большие затраты будут весьма нерациональны, разве что только в том случае, если в доме будет постоянно проживать большая семья.
Проект небольшого дачного загородного дома с печьюВернуться к оглавлениюКакой печью лучше обогревать дом
Обеспечить тепло в доме можно не только за счёт прогревания воздуха в помещении, но и благодаря хорошо прогретому полу, стенам и предметам интерьера. В этом случае, плюс заключается в том, что точка росы фасадных стен смещается в сторону наружного утеплителя. Соответственно, обеспечивается полная сухость внутренних стен, а также отсутствие грибка, плесени и влаги.
Для такого обогрева можно использовать не только русскую печь, которая изготавливается из кирпича, но и металлическую конструкцию, которая быстро и легко устанавливается. Монтаж такой печи можно произвести своими руками, не прибегая к помощи мастера. Металлическая конструкция нагревается очень быстро, что позволяет сразу же начать отапливать помещение. При этом когда топка перестаёт работать, печь остывает так же быстро. Металл не может аккумулировать тепло, его теплоёмкость очень низкая, поэтому в комнате прогревается только воздух, а не стены.
Металлическая печь быстро устанавливается в коттедже и не требует серьёзных доработок в проекте домаВ этом случае прекрасной альтернативой является кирпичная печь, которая обладает великолепными аккумулирующими свойствами. Чтобы разобраться с тем, какая именно разновидность кирпичной печи подойдёт для обогрева вашего дома, необходимо, прежде всего, выявить все особенности его эксплуатации. Всесезонное проживание подразумевает, что в доме всегда кто-то находится, поэтому пару раз в сутки можно спокойно сделать закладку дров для обеспечения постоянного обогрева.
Кирпичная печь для обогрева дома дровамиВернуться к оглавлениюКак обогревать дом кирпичной печью
Проекты одноэтажных домов с печкой предполагают размещение печи таким образом, чтобы она полностью или частично выступала в качестве межкомнатной перегородки. В двухэтажном коттедже верхний этаж обогревают при помощи дымохода, проходящего по стене, и дополнительно установленного каменного или кирпичного камина. Неоспоримым достоинством такой системы является возможность накапливания и отдачи тепла даже после завершения топки печи.
План 1 этажа дома с печью
План 2 этажаЕсли подытожить, то если вы протопите кирпичную печь один раз в течение 3-4 часов, вы сможете обеспечить качественный обогрев комнат продолжительностью не менее 12 часов. Комнаты второго этажа будут обогреваться за счёт дымохода, проходящего с ними по общим стенам. У кирпичных печей присутствует всего один-единственный недостаток: время их прогрева составляет не менее одного часа.
Вернуться к оглавлениюСовременные русские печи из кирпича
В настоящее время конструкция традиционной русской печи насчитывает несколько вариантов выполнения, которые зависят от бытовых потребностей той или иной семьи.
Итак, современные проекты печей для дома бывают:
Вернуться к оглавлениюРасположение печи в доме
Планировка дома с печным отоплением осуществляется в зависимости от основного назначения печи. Кухонные плиты, которые ежедневно используются для приготовления пищи, размещают в гостиных или на кухнях. В качестве перегородки и для отдачи тепла может выступать отопительный щиток, максимально выступающий в ту комнату, где требуется больше обогрева. Кухонное помещение получает необходимое количество тепла от чугунной плиты и топливника.
Варианты расположения печи в частном домеЕсли проект дома с русской печью, в первую очередь, подразумевает качественный обогрев помещений, то конструкцию печи целесообразнее располагать у самой холодной наружной стены. Благодаря такому расположению исключается движение холодного воздуха у пола, что при печном отоплении не всегда даёт хорошие результаты. Отопительные печи, в большинстве случаев, располагают рядом с дверными проёмами или в перегородках, разделяющих комнаты, как можно ближе топочной дверцей к входной двери.
В любом случае печи рекомендуется располагать таким образом, чтобы они занимали как можно меньше полезного пространства, при этом в комнату, где требуется обогрев, выходил максимум теплой рабочей поверхности. Между стропилами крыши и балками междуэтажного или чердачного перекрытия следует обеспечить выход дымовой трубы. Поддувальные дверки и топочную располагают таким образом, чтобы от них до стены или перегородки было не менее одного метра свободного пространства.
Дизайн кухни с русской печкой
Композиционным центром такой кухни, несомненно, является русская печь, которая обычно располагается в углу комнаты. Напротив неё ставят один или два небольших дивана, тем самым создавая своеобразную зону отдыха, где можно посидеть с друзьями за чашечкой чая.
Пример современного дизайна интерьера кухни с небольшой печью в углуБудет просто замечательно, если на кухне, ещё на стадии проектирования дома, предусматривалось наличие больших окон, которые будут пропускать большое количество естественного света. Для оформления этой зоны отдыха можно использовать цветы в горшках и вазах, небольшие картины в деревянных рамках, посуду, расписанную под гжель и хохлому. Если размеры кухни позволяют, то около одной из стен можно поставить шкаф с полками, где будут храниться сервизы с посудой.
Зону готовки пищи обустраивают вдоль одной стены, во всю её длину. Нижние шкафчики обычно используют для хранения посуды и различной кухонной утвари. Нижние шкафчики разной высоты позволяют создать очень необычный и интересный эффект, который обязательно станет особенной, отличительной чертой вашей кухни.

Самый маленький шкафчик, который находится ниже всех остальных, идеально подойдёт для хранения пакетов или банок. На столешницу можно поставить пару горшков с цветами или даже зеленью – укропом, салатом или луком, что заметно упростит процесс приготовления пищи, ведь необходимая приправа будет всегда под рукой.
proekt-sam.ru
Печное отопление частного дома: разновидности печей и варианты их обустройства
16 Мая 2018 2018-05-16
7533
Время чтения 17 минут
Прочитать позжеОтправим материал на почту
Распечатать
Времена, когда печное отопление было единственным средством для обогрева дома и приготовления пищи уже прошли. Сейчас многие предпочитают обогревать свое жилище газовыми или электрическими котлами, поскольку они освобождают хозяина от необходимости заботиться о заготовке топлива для печки. Это удобно, но есть люди, которые не представляют частный дом без печи. Она всегда поможет обогреть помещение, приготовить еду, и ей не страшны отключения электричества или газа.

Печное отопление еще актуально
Несмотря на то, что сейчас существует много способов отапливать свое жилище, печь для отопления дома не теряет своей актуальности. Красиво выложенная из кирпича, облицованная камнем или декоративной плиткой, печь прекрасно дополняет интерьер дома. Чугунная печка или камин также прекрасно вписываются в общий интерьер. Многие даже не представляют своего жилища без хорошей русской печки. Ведь как приятно зимой погреться возле печки, тем более, всегда будет место, где можно обсушить обувь и одежду. Поэтому печи были всегда популярны и останутся таковыми еще многие годы.
Важные требования, которым соответствует печное отопление:
-
пожаробезопасность;
-
низкое потребление топливных ресурсов;
-
продолжительность горения топлива;
-
простота в обслуживании;
-
нагревается очень быстро и при этом продолжительное время сохраняет тепло и отдает его помещению.
Современные технологии проникают во все отрасли – определенные изменения коснулись и печного дела. Современные печи можно оборудовать таким образом, что они могут служить нагревательным баком, генератором электроэнергии от сгорания топлива. Многие устроены таким образом, что одной закладки дров хватает чтобы поддерживать горение долгое время.

Печное отопление частного дома
Существует огромное множество вариантов печей. Вот только некоторые из них:
-
чугунные печи для отопления;
-
чугунные печи для отопления и приготовления пищи;
-
чугунные печи по конструкции камина;
-
кирпичные печи «Шведка»;
-
кирпичные печи для отопления и варки еды;
-
русские печи;
-
каминные печи из кирпича;
-
печи из кирпича «голландка».
Все эти виды имеют свои преимущества и недостатки. Каждая печка для отопления дома хороша по-своему. Ниже пример классической кирпичной печи.

Преимущества печного способа отопления
Для того чтобы понимать необходимость установки печи для отопления частного дома, надо знать ряд ее преимуществ:
-
абсолютная автономность работы и независимость от внешних факторов, таких как отключение воды, газа или электричества;
-
кирпичная кладка способна длительное время согревать помещение, даже если в топке уже погас огонь;
-
одновременно с обогревом комнат, плиту можно использовать для готовки;
-
экономичность в плане покупки топлива и необходимости оплачивать счета за общее снабжение газом, электричеством и водой, доступность дров, по сравнению с торфом или углем;
-
отсутствие перегретого и пересушенного воздуха;
-
просто приятная атмосфера в доме;
-
простота эксплуатации: здесь не нужно высокотехнологичное электронное оборудование.

Недостатки печного отопления
Наравне с преимуществами печи обладают и отрицательными качествами.
-
Достаточно продолжительное время нагрева. Это происходит по той причине, что кирпичи требуют длительного времени для набора тепла.
-
Теряется некоторое количество полезной площади, так как чем больше доме, тем крупнее придется установить печь.
-
Большой вес. Если печь очень габаритная, то придется возводить под нее отдельный фундамент.
-
Неравномерный разогрев всех помещений, то есть чем дальше комната находится от печи, тем больше времени уйдет на ее обогрев, теплый воздух доберется до нее в последнюю очередь.
Что учитывается при выборе
Выбрать, какая печь будет устанавливаться, не так просто. Печи бывают кирпичными и металлическими. Обычно в качестве металла используется чугун: он дольше всех держит тепло.
При выборе габаритов печи, ее формы, материала следует учитывать несколько факторов:
-
Количество отапливаемых комнат. Для одной или двух комнат достаточной небольшой металлической печи. Для более крупных домов с большим количеством комнат устанавливать следует кирпичную печь. Ее можно дополнить водяным контуром, который протягивается через все комнаты. Такой вариант позволяет увеличить КПД печки, а также более быстро и эффективно обогревать все помещения.

-
Габариты помещения. Логично предположить, что крупная кирпичная печка просто займет все пространство маленькой комнаты.
-
Вид топлива, на котором будет работать будущая печь. Это может быть газ, дрова, торф, уголь. Нередко применяются комбинированные устройства, но у них своя конструкция и это надо учитывать.
В старину печи устанавливались по центру дома. Они выходили каждой стороной во все комнаты, обогревая каждую из них. Массивные печи остывают очень долго, поэтому, после растопки можно быть уверенным, что все комнаты будут обогреты. При монтаже потребуется дополнительно прорубить отверстие в крыше для вывода трубы. Вообще, закладывать место для печки следует еще на этапе строительства дома. Удачно выбранное место – это залог эффективного использования функционала печи, ведь она может не только обогревать, но и готовить.

Еще при выборе печки для дачного дома придется продумать такие моменты:
-
где будет устанавливаться печка;
-
каких размеров она будет;
-
как будет выходить дымоход: через стену или через крышу;
-
если печь кирпичная, то придется прорубить пол и подготавливать дополнительно фундамент под нее;
-
обеспечить меры пожарной безопасности;

На нашем сайте Вы можете найти контакты строительных компаний, которые предлагают услугу утепления домов. Напрямую пообщаться с представителями можно посетив выставку домов «Малоэтажная Страна».
Схемы и конструкции печного отопления в доме
Печное отопление частного дома подразделяется на несколько типов согласно конструкции топки:
-
Прямоточная. В основном, такие печи делают из кирпича. Принцип их работы заключается в прохождении потока воздуха через поддувало, далее через колосник, поддерживая горение топлива, а затем выходит через трубу, уже в виде дыма. Большой недостаток такой конструкции – очень низкий КПД: значительная часть жара, в прямом смысле, попросту вылетает в трубу. Прямоточные печи оборудуются специальными задвижками, которые закрываются, когда топливо прогорает и перестает вырабатывать угарный газ. Это позволяет сохранить жар на долгое время. Также для увеличения коэффициента полезного действия во время сборки печи в нее может закладываться битое стекло, которое очень долго держит температуру.
-
Канальная. Главная особенность таких печей – это система каналов, по которым движется дым и равномерно прогревает всю печь. Благодаря такому решению, вся конструкция быстрее нагревается и хорошо удерживает тепло. Скорость нагрева зависит напрямую от длины каналов и их количества.

-
Колпаковая. Принцип работы основан на движении поточных газов естественным способом. Сначала они заполняют колпак, где остывают и затем самостоятельно выходят через специальную подвертку. Это позволяет равномерно и быстро нагреть печь, которая затем долгое время сохраняет тепло, отапливая помещение. В отличие от первых двух вариантов, такая конструкция проста в обслуживании. Сажу можно легко удалить из колпака через специальное отверстие, тогда как в первых двух случаях придется чистить дымоходы и трубу, что не очень удобно.
-
Водяной контур. Это не конструкция топки, но достаточно часто встречающийся элемент схемы отопления, который можно установить на любую печь. Необходимо лишь добавить нагревательный бак в топку или змеевик на трубу.

Виды печного оборудования
Под печным оборудованием понимается конструктивные элементы, которые используются при монтаже и эксплуатации печки. В чугунных печах они уже идут в комплекте от производителя, но при подведении к ним дополнительно водяного контура, придется докупать дополнительные элементы для печи:
-
Трубы. Это могут быть пластиковые или металлические трубы. Предпочтение всегда отдается металлическим, так как они более надежные, однако пластиковые стоят дешевле. Минусом пластиковых труб является возможность их оплавления в стыках с металлом. Металлические не имеют такого недостатка.
-
Мембранный (расширительный) бак. Он необходим для поддержания постоянного давления в трубах. При нагреве вода начинает расширяться и выходить в этот бак, благодаря чему трубы не разрушатся от избытка давления. При остывании избыток воды из бака начинает постепенно поступать обратно в трубы.

-
Радиаторы. Обычно их устанавливают непосредственно под окнами. Они увеличивают теплоотдачу водяного контура.
-
Водяной насос. Он требуется для циркуляции воды в контуре. Его установка способствует быстрому обогреву помещения, так как нагретая вода быстрее поступит в радиаторы и нагреет помещение. Без насоса движение воды по трубам осуществляется самотеком, но для этого надо делать специальные уклоны, рассчитывать разницу высот и разницу температур первого контура с нагретой водой и второго с охлажденной – его еще называют обраткой.
-
Теплообменник. Он устанавливается в топку печи, над ней, или на дымоход. Все варианты имеют свои преимущества и недостатки. Своего рода это котел, в котором впоследствии будет нагреваться вода. Для дымоходов нагревательный бак выполняется в виде змеевика, для топки может иметь произвольную форму, но очень важно, чтобы он имел достаточную площадь соприкосновения с пламенем печи.

На нашем сайте Вы можете найти контакты строительных компаний, которые предлагают услугу монтажа печей и каминов. Напрямую пообщаться с представителями можно посетив выставку домов «Малоэтажная Страна».
Дровяные печи для отопления частного дома
Дровяные печи долгое время были самым популярным отопительным устройством, так как дрова чаще всего являются самым доступным источником тепла.
Существует несколько видов печей:
-
с водным контуром;
-
одновременно варочные и отопительные;
-
длительного горения.
Выбор дровяных печей можно делать от самых простых по конструкции, до значительно сложных. Вот варианты некоторых из них:
-
«буржуйка»;
-
классическая печь;
-
пиролизная печь;
-
камин;
-
котел для топки на дровах;
-
печь, имеющая варочную поверхность;
-
печь с возможностью длительного горения дров;
-
русская печь.
Про дровяную печь в системе отопления смотрите в следующем видео:
При выборе следует, прежде всего, обращать на технические и эксплуатационные характеристики:
-
габариты самой печи;
-
наличие дополнительных приспособлений;
-
тепловая емкость;
-
материал, из которого она изготовлена.

Это может быть интересно! В статье по следующей ссылке читайте про дровяные печи для дома.
Выбор дровяной печи для отопления дома
Вариантов и модификаций современных отопительных печей существует огромное множество. С увеличением количества вариантов всегда появляется проблема выбора. Обычно руководствуются следующими принципами:
-
размер печи следует выбирать исходя из габаритов помещения и количества отапливаемых комнат;
-
функциональное назначение: варочная, отопительная, комбинированная;
-
правильный подбор мощность печи.
Вкусовые предпочтения у всех разные. В этом вопросе советовать сложно. Нужно всегда исходить из функционального назначения печи. Если печь должна просто отапливать, то можно вынести ее в отдельное помещение. Если вам по душе открытый огонь, возле которого можно посидеть холодным зимним вечером, то следует выбирать конструкцию, позволяющую установку внутри дома. Такая печь будет прекрасно дополнять интерьер помещения.
Про выбор дровяной печи смотрите в видеоролике:
Правильное размещение печи
Как и в старину строить дом начинают с планирования размещения печи. Есть некоторые правила, которых следует придерживаться:
-
Площадь помещения должна быть больше 16 квадратов.
-
Не стоит устанавливать близко с каменной стеной, тогда большая часть тепла будет передаваться в наружную часть дома. А в деревянных домах это вовсе не рекомендуется в целях пожарной безопасности.
-
Тяжелая печь со временем разломает любые лаги и стропила, поэтому для кирпичной печки нужен отдельный фундамент.

Если целью является отопить как можно больше комнат, то устанавливать ее следует так, чтобы печь была частью всех этих комнат. Устанавливается она в перегородках комнат таким образом, чтобы ее стены или углы попадали в эти комнаты.
Таким образом, например, ставили печи в старину, во многих деревенских избах. Печь располагается по центру, а комнаты по ее периметру. Это классический вариант размещения печи. Отапливается весь дом одновременно.

Если планировка состоит из двух комнат: общей комнаты и кухни, то разумней основную часть вынести в комнату, а варочную поверхность и топку на кухню.
Это может быть интересно! В статье по следующей ссылке читайте про печи из кирпича для дачи на дровах.
Требования пожарной безопасности к печному обогреву дома
Перед установкой печи следует заранее подумать о пожарной безопасности, так как во время топки печка будет нагреваться до высокой температуры. Во избежание пожара при монтаже печки нужно соблюсти следующие меры безопасности:
-
Печь необходимо устанавливать на некотором расстоянии от стены. Во-первых, не будет прямого контакта со стеной, особенно, если поверхности деревянные. Каменные стены будут дополнительно остужать печь, что скажется на расходе топлива. Во-вторых, нагреваться будет воздух в этом промежутке, а не сама стена;
-
Стены в месте установки печи следует дополнительно обшить негорючим материалом. Для этих целей идеально подходит листовой шифер. Он плохо проводит тепло и не воспламеняется. Обшивать следует все стены в местах, где будущая печь будет даже косвенно соприкасаться со стеной;
Наглядно про пожарную безопасность печного отопления в следующем видео:
-
Если стены декорируются легковоспламеняющимися материалами, то расстояние от них и до печки должно быть не менее полуметра;
-
Рядом с топкой обязательно следует положить лист из металла или любого другого негорючего материала, например того же шифера. Если печь выполнена из кирпича, то из него можно выложить дополнительную емкость. Это делается на случай случайного выпадения углей из топки.

На нашем сайте Вы можете найти контакты строительных компаний, которые предлагают услугу аудита строительных работ. Напрямую пообщаться с представителями можно посетив выставку домов «Малоэтажная Страна».
Выбор материалов для печи
Основным строительным материалом для печей является кирпич, который укладывается на глину или специальный раствор, выдерживающий воздействие высоких температур. Сами кирпичи тоже используют специальные – огнеупорные, для кладки печей.
Существуют также специальные облицовочные кирпичи для внешней отделки. У них фигурная форма и меньшие теплопроводные свойства. Облицовка также помогает избежать резкого перепада температур между помещением и кирпичной кладкой, что пагубно сказывается на кирпиче.
Кирпич выбирают полнотелый – у него хорошая теплоемкость и теплоотдача. Для дымохода используют самый качественный кирпич, так как перепады температур снаружи дома гораздо больше, чем в помещении.

Как совмещается печной и водяной обогрев
Водяное отопление от печи помогает значительно увеличить коэффициент полезного действия последней. При небольших размерах, печь с водным контуром способна отапливать большие площади.
Для организации водяного обогрева в тело печи встраивается теплообменник, а иногда его встраивают на дымоход. Далее к теплообменнику подводятся трубы, которые в дальнейшем соединяются с радиаторами. На обратной линии устанавливается расширительный бак и насос. Насос не обязателен, но он помогает циркуляции воды в трубах. Благодаря хорошей циркуляции комнаты начинают отапливаться уже в процессе топки печи. Также устанавливается в обязательном порядке система слива. Если печь не будет использоваться продолжительное время, например, зимой, то воду из системы нужно обязательно сливать, чтобы она не замерзла в трубах и не повредила их.
Наглядно про водяное отопление от дровяной печи в следующем видео:
Это может быть интересно! В статье по следующей ссылке читайте про фундамент под печь.
Оборудование для водяного печного отопления
Для водного контура понадобятся:
-
трубы;
-
радиаторы;
-
водяной насос;
-
расширительный бак;
-
теплообменник;
-
сливные клапаны;
-
запорные клапаны;
-
термометр;
-
фильтр.

Как правильно сделать фундамент под печь
Для печей с малым весом до 250 кг фундамент совсем не нужен. А вот для тяжелых кирпичных конструкций он необходим. Здесь надо знать, что печь не ставится на основной фундамент дома, так как через него будет уходить тепло наружу.
Тип фундамента выбирают отдельно в каждом случае – в зависимости от основания дома и прочих факторов, Чаще всего используют монолитный, блочный или свайный.
Фундамент под печь следует укладывать на этапе строительства дома. Поэтому заранее следует определить ее местоположение. Если печь необходимо поставить в уже отстроенном доме, и полы в нем деревянные, тогда придется прорубить пол и выкопать котлован под установку фундамента.

Основание для печи не должно соприкасаться с основным фундаментом дома и быть на расстоянии от него не менее 5 см. Располагать большую массивную печь из кирпича лучше всего по центру дома. Это наиболее оптимальное решение для равномерного обогрева комнат.
Как топить печку правильно
Перед растопкой печи, ее следует подготовить – очистить топку и зольник, чтобы остатки углей и золы не мешали горению новых дров. Далее необходимо заложить в топку нужный объем дров, чтобы оставалось пространство для воздухообмена. Для розжига под поленья подкладывают кусок бумаги, который поджигается со стороны зольника.
Это может быть интересно! В статье по следующей ссылке читайте про постройку кирпичных печей.
Заключение
Даже несмотря на повсеместное распространение современных отопительных приборов, дровяные и прочие твердотопливные печи остаются востребованными для загородных домов. Даже если не принимать во внимание практическую и экономическую сторону ее использования, декоративный эффект печи в интерьере сложно переоценить. Единственная сложность, которая может возникнуть при желании обустроить печное отопление – найти грамотного печника. Несмотря на популярность кирпичных печей, квалифицированных мастеров, знающих все тонкости печного дела, не так много.
Прочитать позжеОтправим материал на почту
Распечататьm-strana.ru
планировка деревянного и кирпичного строения с фото
Дом с таким отопительным прибором, как печь требует внесения изменений в его архитектуру. Специалисты начинают проектирование с выбора типа и места строительства устройства. Важно учитывать тип печи – она бывает русская, шведская или современная чугунная. Основная цель проектировщика – верно обозначить место отопительного прибора и составить план размещения комнат так, чтобы проникало тепло.
Особенности проектирования жилья с печным отоплением
При проектировании следует уделять особое внимание месту расположения печи. Желательно, чтобы она находилась в центре комнаты.

Рассмотрим ряд проектов современных домов с русской печью:
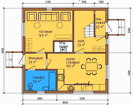
- Маленький дом с верандой на даче. Имеется единственная комната (площадь – 15 кв. м.) и обеденная зона (8 кв. м.). Печь располагается в центре, тепло идет в комнату, обеденную зону и санузел. Топка находится на кухне, как духовой шкаф и варочная. Если нужна горячая вода, бак следует расположить в ванной. В жилом помещении следует поставить фальш-камин, сделав маленькое углубление в стенке. Это послужит украшением дома и возрастет теплоотдача;
- Дом из дерева с парой комнат и санузлом. Спальня и гостиная являются смежными, в последней находится обеденная зона. Печь отапливает все комнаты, располагаясь в простенке. Лежанка находится в спальне, выступая зоной для отдыха и увеличивая теплоотдачу. В прихожей имеется сушилка, куда кладут мокрую одежду и обувь. В обеденной зоне есть плита. Имеется летний ход, благодаря которому можно включать плиту без отопления;
- Дом с гостиной и двумя спальнями. Рассматриваемый дом из кирпича предназначен для постоянного проживания, поэтому требует двух печей. В чертеже главное монооборотное отопительное устройство находится между детской и гостиной. Корпус и дверка располагаются в гостиной, а отопление детской происходит с помощью грубки, чтобы защитить детей от угарных газов. Второй очаг, на котором находится духовка и плита, стоит в обеденной зоне и отапливает другую спальню. Модель функционирует в любое время года – в летний период открываются заслонки, с помощью которых с высокой скоростью уходят горячие газы. В прихожую тепло идет из обеденной зоны. Помещение маленькое, поэтому для комфортной температуры можно открыть дверь на некоторое время. Тепло не выходит на улицу, потому что холодный воздух отсекается застекленной верандой.
В сравнении с простой печью, у камина более простое устройство, но у него есть свои особенности. Его нельзя считать полноценной системой отопления в условиях российского климата, особенно в зимний период. Если камин устанавливают в деревянном доме, необходимо при проектировании уделить повышенное внимание противопожарной безопасности, так как он представляет собой открытый очаг.
Правила установки и эксплуатации
Планирование небольшого одноэтажного дома 6 на 8 подразумевает установку одной печи. Установка печи из кирпича происходит гораздо дольше и сложнее, чем из металла. Для начала нужно подобрать правильный участок и отгородить стену при необходимости.

Обустройство фундамента происходит в соответствии с размерами печи. С каждой стороны должно быть шире на 10-15 см. Лучше всего производить установку в обеденной зоне.
Подполье, где находится отопительное устройство, отгораживается толем или рубероидом в несколько слоев. После следует осмотреть потолочные балки, так как от их локализации зависит прохождение дымохода. Его устанавливать нужно как можно дальше от матриц между стропилами. Оптимальный участок – это область у наружной стены. В этом случае дымоход будет обеспечивать защиту жилого помещения от сквозняков.
Для облицовки кирпичной печи нужно выбирать кафель или огнеупорную штукатурку. Наилучшим выбором будет жаропрочная плитка, так как она не препятствует теплоотдаче.
Современные модели из металла устанавливаются проще. Обычно весь процесс занимает несколько часов, после чего уже разводится огонь.
Основное правило – не устанавливать печь вплотную к стене. Даже если имеется облицовка кафельной плиткой, печь будет раскаляться и повреждать ее поверхность. Если она деревянная, может произойти пожар. По технике безопасности печи из металла должны находиться на расстоянии не менее 25 см от стен. Все близлежащие поверхности должны иметь облицовку из негорючих материалов.
Печь нужно устанавливать на плотный лист из стали или небольшой подиум. Под полом стоит прикрепить дополнительные стойки в целях страховки, они будут принимать на себя весь вес. Также имеются подвесные печи, которые не требуют установки опорных стоек.
Дымоход для печи из металла следует выводить через стену или потолок. Диаметр патрубка должен быть одинаковым с дымоходом, чтобы образовалась стабильная мощная тяга.
Перед тем, как установить новоприобретенную железную печь, стоит сделать первичный обжиг на открытом воздухе. Это нужно для закрепления краски на поверхности и утраты неприятного аромата.
Дымоход также является крайне важной частью конструкции. На успех эксплуатации влияет правильная изоляция дымохода и корпуса. Важно обращать внимание на материал. Для домов из дерева нужно устанавливать гильзованный дымоход. В этом случае снижается уровень нагрева поверхности и опасность загорания.
Если он создан из оцинкованной стальной трубы, требуется изоляция негорючими материалами. Очень важно уделить внимание участкам соприкосновения трубы с поверхностями из дерева и кровлей.
Сэндвич-дымоход – удачный выбор для установки печи в доме, сделанном из бруса. Поверхность имеет крепкую защиту в виде изоляции, не происходит сильного нагрева. При этом время эксплуатации – 10-15 лет. После может произойти отслойка изоляции и потребуется ремонт.
Керамический вариант является самым лучшим по качеству. На нем почти не появляется конденсат, из-за цельной конструкции тяга постоянно хорошая, время эксплуатации исчисляется десятилетиями. Имеется один минус – очень большой вес трубы.
Расположение печи в доме

Печное отопление без водяного контура будет достаточно эффективным, если расположение печи в доме будет в центре смежных комнат. Для этой цели ее нужно поставить в простенке между помещениями, а топку вывести на кухню или в прихожую.
Некоторые специалисты устанавливают 2-3 очага в разных комнатах. Но отдавать предпочтение лучше центральному тепловому узлу, потому что значительно экономится расход топлива и требуется всего один дымоход.
Если в доме два этажа, нужно позаботиться о надежном перекрытии между ними. Они должны выдерживать постройку из кирпича. В чертеже тяжелые части печи, такие как варочная плита, лежанка и духовка, располагаются на нижнем этаже дома, а в верхнем этаже находится отопительный щиток.
В том случае, когда жилое помещение спланировано как студия и состоит из единственной большой комнаты, русская печь располагается посередине и служит разделителем пространства. Происходит разделение на спальню, обеденную зону, общую комнату и гостиную.
Разновидности печей
Основная классификация подразумевает разделение печей на металлические и кирпичные:
- Кирпичная печь – это классический вариант. Кирпич остывает длительное время, поэтому греть такая печь будет даже после того, как потухнет огонь. Каменные печи для дома могут нагреть большой дом в несколько этажей. Раскаленность кирпича невозможна, поэтому обеспечивать защиту стен, потолка и полов не нужно. Печи из кирпича имеют низкую себестоимость, особенно если своими руками по чертежам и схемам делать кладку конструкции. Для постройки нужно выбирать огнеупорный обожженный кирпич, но можно сделать его самостоятельно. Планировка домов с русской печкой требует возведения мощного фундамента, если его не сделать, может произойти перекос здания;
- Металлическая печь занимает меньше места. Они более эстетичны, можно делать корпус уникальных размеров и форм. Без потребности в ремонте они служат более 50 лет. Комнаты нагреваются достаточно быстро независимо от вида топлива. Цена довольно низкая. Конструкция остывает с такой же высокой скоростью, как и нагревается. Также они имеют высокий риск возникновения пожара, но при соблюдении всех условий эксплуатации, можно об этом не беспокоиться. Не стоит ставить ее возле легко воспламеняющихся предметов и поверхностей. Важно обеспечить защиту керамической плиткой.

По типу конструкции наиболее популярны такие виды, как традиционная русская печь, печь-камин и чугунная печь. Существуют еще электрокамины, которые можно установить как в квартире, так и в деревянном доме. Его можно поставить за полчаса. Прибор нагревает помещение и визуализируется пламя.
skedraft.ru