Дом 70 кв м планировка: Проекты домов 70 м² — Планы, фото, 3D виды, чертежи и планировки коттеджей 70 кв м
95 фото готовых проектов одноэтажных и двухэтажных домов
Строительство дома 70 кв. м. под ключ является средним вариантом. Такая площадь позволяет вместить в постройку все необходимые узлы и условия для комфортной жизни. В некоторых проектах существуют даже удобные гаражи. Далее будут представлены самые популярные варианты построек данной площади.
Содержимое обзора:
- Дом с гаражом
- Эффективное использование пространства
- Классика
- Сип-панели
- Теплота
- Мансарда
- Подвал
- Фото домов 70 кв. м.
Дом с гаражом
Бюджетный вариант для владельцев автомобилей. Для комфортной жизни в нем нужно обеспечить наличие:
- Спальни;
- Санузла:
- Прихожей;
- Кухни;
- Гостиной.
Для этого должно хватить и 50 кв. м., а оставшейся площади будет достаточно, чтобы организовать просторный гараж для одного автомобиля. Это отличный вариант для небольших семей.
Кроме этого, он довольно прост в возведении, дом из газобетона в 70 кв. м. позволит удовлетворить все необходимые нужды.
При желании, его можно возвести на достаточно просторном участке, и заниматься уходом за собственным огородом, клумбой или лужайкой.
Эффективное использование пространства
Если у вас небольшой участок, и нужно максимально полезно использовать пространство, то прямоугольный проект дома 70 кв. м. будет идеальным решением.
Такая планировка по максимуму использует отведенную для нее территорию, и позволяет применять в строительстве практически любой материал.
Использование каркасной конструкции позволит в кратчайшие сроки возвести собственный дом.
Классика
Цена на дом в 70 кв. м. будет в любом случае меньше чем на большую постройку. Благодаря этому можно использовать строительные материалы, которые были бы не по карману владельцам больших фазенд.
Отлично смотрятся небольшие, но уютные уголки, сложенные из деревянного сруба.
Сип-панели
Это экономичный тип постройки, который может включать в свою конструкцию мансардную крышу. Это позволяет создать дополнительное пространство внутри.
Даже необходимость дополнительного утепления ну должна стать проблемой, так как отопление дома в 70 кв. м. не должно вызывать сложности.
Теплота
Независимо от типа конфигурации, нужно предусмотреть способы обогрева помещений.
Известно и понятно, что в холодном помещении будет не комфортно. Но немногие думают, что это может нести угрозу для здоровья в лице зловредной плесени.
Отопление может быть наведено несколькими способами:
- Камин или печь;
- Электрическое отопление;
Газовый котел.
Каждый из этих вариантов обладает своими преимуществами и недостатками.
Камин и печь позволяют создать в комнате очень уютную обстановку. Треск поленьев, тепло и эстетический вид сделают из дома настоящую волшебную избушку.
Но камин должен быть надежно и правильно заложен, используются специальные огнеупорные материалы, к тому же нужен дымоход для выведения угарного газа.
За таким отоплением нужен постоянный присмотр и уход. Красота и эстетика требуют много сил и времени.
Электрическое отопление, особенно теплый пол, наверное самое удобное средство обогрева дома. Кроме того, что конвективные потоки, поднимаясь, будут прогревать все помещение, ходить по такому полу босиком, дети смогут безопасно играться на нем.
Но в то же время, постоянно растущие цены на электроэнергию делают его очень дорогим.
Самым популярным вариантом для частных домов является использование котла, который включает в себя печь для сжигания твердого или газообразного топлива и систему змеевиков, поглощающих полезное тепло и распределяющих его во все помещения.
Мансарда
Мансарда отличный вариант для небольших домов. Правильное использование чердачного помещения позволяет увеличить жилую площадь чуть ли не вдвое.
При правильном ориентировании дома относительно сторон света, изоляции и системе отопления, можно создать комфортные условия даже в холодных районах России.
Подвал
На фото дома в 70 кв. м. не всем ясно, куда девают лишние вещи жильцы. Для этой цели может использоваться чердак, но его можно применить с большей эффективностью.
Фото домов 70 кв. м.
Помогите проекту, поделитесь с друзьями 😉
Дом 70 кв. м. — ТОП-100 фото лучших дизайн-проектов и удачной планировки
Дом 70 кв. м. — лучшие варианты планировки частных домов и загородных коттеджей. Достойное оформление, сделанное по уму! (100 фото)
Построив частный дом, человек обретает комфорт и здоровье. Даже небольшое здание обеспечит уютное проживание в нем, если грамотно выполнить проект. Чтобы увидеть варианты, которые предлагаются современными специалистами, посмотрите фото частного дома 70 кв. м. Оригинальные строения дополнят любой ландшафт. Они способны полностью решить проблему застройки загородного участка.
Часто небольшие строения используются для отдыха летом. Они позволяют человеку вырваться из городской суеты и отдохнуть на природе. Уровень комфорта зависит от благоустроенности земельного участка и дома.
Оглавление статьи:
Преимущества выбора малогабаритного дома
Популярность таких построек постоянно растет. Для многих людей такой вариант является оптимальным по условиям проживания и цене. Большим спросом пользуются небольшие домики при необходимости обустройства территории для летнего отдыха. Одноэтажный дом 70 кв. м возводится быстро, при этом хозяевам не придется делать больших капиталовложений в его строительство.
С каждым годом все больше людей желает приобрести или построить жилище за городом. Для этого подойдут типовые проекты, разработанные проектировщиками и проверенные временем. Внести изменения в готовый чертеж проще, чем создавать его с самого начала.
Возведение дома на 70 кв. м. под ключ можно начать сразу после покупки типового проекта.
Если заказана индивидуальная разработка, то потребуется определенное время на создание документации. Все недочеты в готовом решении были устранены ранее, строительство осуществляется по готовым документам. Существует большое количество типовых вариантов. Можно выбрать любую планировку, которая понравится.
Необходимо заранее определиться со строительными материалами, сколько планируется возводить этажей. Обязательно учитываются особенности рельефа, размеры участка, количество жильцов.
Планировка одноэтажных зданий
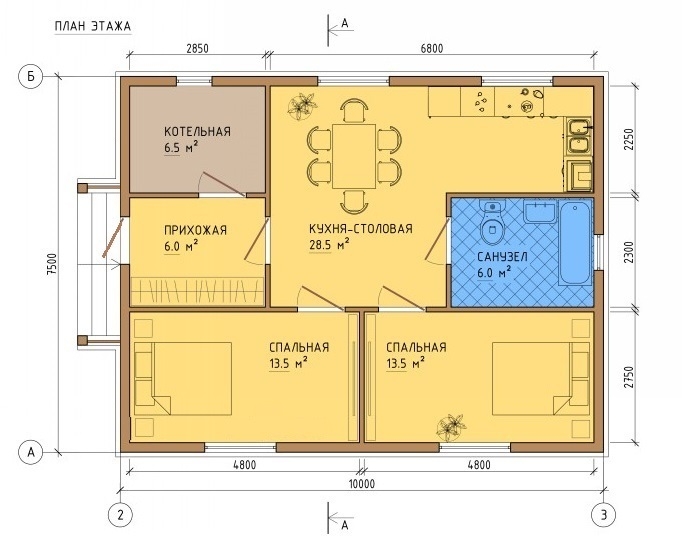
Основной проблемой компактных строений является ограниченное внутреннее пространство. При планировке обязательно учитываются санитарно-строительные нормы. Для возведения здания необходим участок с определенной площадью. Дизайн дома следует тщательно продумать, чтобы все данные были внесены в чертежи.
Стандартная планировка предусматривает такие помещения: прихожую, гостиную, котельную, спальни, санузел. Интерьер дома должен соответствовать потребностям жильцов и их вкусовым предпочтениям.
Для детской и спальни не выбирают проходные помещения, что учитывается еще при планировании строения. Лучше поручить эту задачу опытным специалистам, которые сумеют предусмотреть все нюансы.
Выбор материалов
При возведении небольших строений можно сэкономить на возведении фундамента, так как на несущие конструкции не оказывается большая нагрузка. При этом обязательно учитывают глубину промерзания грунта, его состав, особенности ландшафта, планируется ли подвал. При подборе материалов обращают внимание на их вес. Следует также учесть тип возводимой конструкции.
При небольшом бюджете выбирают экономичные материалы. Заранее определяются с назначением постройки, будет ли она использоваться зимой для проживания. Для стен можно выбрать кирпич, который отличается долговечностью. Стоит он недешево, поэтому многие владельцы недвижимости отдают предпочтение газобетонным блокам. Они прекрасно сохраняют тепло, имеют небольшой вес, применяются для небольших строений.
Деревянные материалы подходят для быстрого возведения дома. Они подходят для дач и строений для постоянного проживания. Проект дома 70 квадратов не требует больших затрат. Наибольшей популярностью сегодня пользуются каркасные строения.
Легкие материалы позволяют возвести жилье с небольшими затратами. Можно подобрать типовой проект или заказать индивидуальную разработку.
Проектирование строения из газобетона
Компактное одноэтажное строение с гаражом станет отличным жилищем для небольшой семьи. Его можно возвести из газобетонных блоков, кирпича. Уютный домик подойдет для летнего отдыха, может использоваться в качестве дачи.
Если требуется увеличить площадь, то в документацию вносят изменения. Чердачное пространство можно использовать для мансарды. Чтобы было комфортно отдыхать на природе, к гостиной или кухне пристраивают террасу.
Такое решение подойдет, если необходимо компактное жилье, в котором все продумано до мелочей.
Проект бревенчатого дома
Прочное и надежное строение возводят на бетонном фундаменте. Для этого используют оцилиндрованное бревно, клееный брус. Природные материалы отлично сохраняют тепло, обладают хорошими звукоизоляционными характеристиками. Для кровли часто используют битум, металлочерепицу.
Построить дом на 70 м2 можно для семьи из нескольких человек. В нем предусматривают гостиную, кухню, спальни и ванную. Выбор помещений, их расположение зависит от предпочтений жильцов, их интересов.
Планировка жилья из СИП-панелей
Компактный, удобный и экономичный проект позволит обустроить жилое пространство для небольшой семьи. В здании можно предусмотреть три жилые комнаты, мансардный этаж. Кухню совмещают с гостиной, чтобы увеличить площадь.
При желании их можно разделить с помощью перегородки.
Дизайнеры предлагают не уменьшать пространство такими элементами, а использовать визуальные способы зонирования. Они эффективно используются в современных интерьерах.
Отопление дома 70 кв. м требует меньших затрат, чем при строительстве больших зданий. Для котла выделяют специальное помещение. СИП-панели используются для возведения экономичных и энергоэффективных каркасных строений. Утепленная прослойка материала дольше сберегает тепло, потребуется меньше финансовых средств на отопление. СИП-панели имеют безопасный для здоровья человека состав.
Заключение
Современные дома имеют все удобства квартиры, но проживать в них не мешает шум соседей. Современные технологии обеспечили возможность быстрого проектирования и возведения зданий. Если заказать типовой проект, то удастся сэкономить средства.
Благодаря огромному количеству решений, можно найти то, которое удовлетворит все пожелания владельцев участка.
Если есть необходимость, в документацию вносятся изменения. Это позволит сделать жилище еще комфортнее для проживания семьи.
Фото домов 70 кв. м.
Вам понравилась статья?
потрясающих современных проектов домов площадью до 70 кв.м.
Нравится архитектура и дизайн интерьера? Следуйте за нами…
- Подписаться
Четыре небольшие квартиры площадью менее 70 квадратных метров каждая.
Красивые элементы дизайна и продуманная расстановка мебели завершают эти планировки таким образом, что они выглядят далеко за пределами скудных пропорций. Смелая акцентная палитра тыквенно-оранжевого цвета помогает выделить различные зоны в квартире номер один, в то время как гипсовые 3D-панели создают ярко выраженную текстуру. Элегантная композиция теплых металлических оттенков на фоне бледно-серых деталей создает воздушную и утонченную эстетику в маленькой квартире номер два. В-третьих, темно-серый современный коврик имеет широко открытую планировку спальни в гостиную, что не извиняет за свое доминирующее присутствие. Наконец, лофт с большим количеством деревянной отделки. Открытое пространство и свободный поток правил во всех четырех, без каких-либо ограничений.
- 1 |
- Дизайнер: Ира Лысюк
- Визуализатор: Ира Лысюк
напоминает нам журнальный столик Arc.- 2 |
- 3 |
- 4 |
- 5 |
- 6 |
- 8 |
- 9 |

- 10 | №
- 12 |
- 13 |
- 14 |
- 15 |
- 16 |
- 17 |
- 18 |

- 19 | №
- 20 |
- 21 |
- 22 |
- 23 |
- Дизайнер: Студия Chill Visualization
- Визуализатор: Студия Chill Visualization
- 24 |
- 25 |

- 26 |
- 27 |
- 28 |
- 29 |
- 30 |
- 31 |

- 32 |
- Визуализатор: Дмитрий Мошков
- 33 |
- 34 |
Это также главный шкаф, с направляющими для одежды, идущими на противоположной стороне от стиральной машины и сушилки. Небольшой шкаф хранит пальто у входной двери.- 35 |
- 36 |
- 37 |
- 38 |
- 39 |
Серая плитка под кирпич создает стильный интерьер душевой кабины.- 40 |
- 41 |
- Визуализатор: Лачин Гулуев
- 42 |
- 43 |
- 44 |
- 45 |
- 46 |
- 47 |
- 48 |
- 49 |
- 50 |
- 51 |
- 52 |
- 53 |
Рекомендуемое чтение: Небольшие интерьеры площадью до 70 кв. м., которые заставят вас пощекотать розовым! [С планами]
Понравилась ли вам эта статья?
Поделитесь им в любой из перечисленных ниже социальных сетей, чтобы отдать нам свой голос.
Ваш отзыв помогает нам совершенствоваться.
Воплотите дом своей мечты в реальность
Узнайте, как
X
Стиль интерьера трех домов площадью 70 квадратных метров [с планами этажей]
Нравится архитектура и дизайн интерьера? Следуйте за нами…
- Подписаться
70 квадратных метров внутреннего пространства начинаются с описания этих трех свежих дизайнов домов, но окончательные результаты — совсем разные истории. Во-первых, квартира с высокими потолками была преобразована из одноуровневой жилой площади в двухэтажный дом с ярким скандинавским цветом. Затем мы обнаруживаем интерьер высокого класса, в котором золотые элементы заполняют уникальный дизайн спальни с роскошным уголком для чтения. Мы завершаем коллекцию домов площадью 70 квадратных метров с дымчато-серой обителью, наполненной акцентами светлого дерева и утонченной душой.
О, и мы добавили все три замечательных плана квартир в придачу. Пожалуйста!
- 1 |
- Дизайнер: mossebo.studio
- 2 |
- 3 |
- 4 |
Одноуровневая квартира была преобразована в двухуровневый дом со спальней, расположенной на новом втором этаже. Уютная эстетика достигается благодаря деревянной облицовке стен и сочетанию деревенского стиля с современной мебелью. Торшеры выполнены в стиле Ода. Оригиналы доступны здесь.- 5 |
- 6 |
- 7 |
- 8 |

- 9 |
- 10 | №
- 11 |
- 12 |
- 13 |
- 14 |
- Документ-визуализатор: Ray2a
- 15 |
Книжная полка с подсветкой рисует над ней параллельную линию. Небольшая соседняя кухня включает в себя обеденный бар на столешнице. Светодиодное освещение шкафа резко освещает темную эстетику кухни.- 16 |
- 17 |
- 18 |
- 19 |
- 21 |
- 22 |
- 23 |
Акцентная подушка с черно-белым геопринтом нарушает сплошной цвет.- 24 |
- 25 |
- 26 |
- 27 |
- 28 |
- 29 |
- Визуализатор: Wertikal Constructions
- 30 |

- 31 |
- 32 |
- 33 |
- 34 |
- 35 |
- 36 |
- 37 |
- 38 |
