Декоративные ветряные мельницы своими руками чертежи – Как сделать ветряную мельницу своими руками
Мельница декоративная для сада своими руками. Инструкция по постройке
Дачные участки, оформленные с душой и любовью, всегда вызывают умиление и желание подольше задержаться взглядом на ухоженных цветочных клумбах или зеленых лужайках. Мнение, что добиться идеальной «картинки» можно только при помощи профессиональных ландшафтных дизайнеров, ошибочно. Достаточно проявить немного фантазии, и ваша дача заиграет новыми красками. Почему бы, например, не построить декоративную мельницу своими руками? Тем более, что вариантов чертежей и подробных инструкций, как это сделать, в интернете размещено предостаточно.
Содержание статьи
Виды мельниц
Существует множество вариантов мельниц, отличающихся по размеру, форме основания, крыше, материалу изготовления и другим параметрам, но условно их всех можно разделить на два основных типа:
- Водяные. Устанавливаются по центру или рядом с искусственными водоемами, альпийскими горками, водопадами и другими декоративными экстерьерными сооружениями, предполагающими «игру» с водой;
- Ветряные. Лопасти мельницы приводятся в движение под воздействием воздушных масс. Чем сильнее ветер, тем скорость их оборотов будет выше, соответственно.
Дополнительная функциональность
При правильно подходе к будущей постройке можно добиться не только эстетического эффекта, но и весомой практической пользы от ее появления на приусадебной территории. Итак, фальш-мельница может выполнять следующие функции:
- Служить маскировкой для канализационных люков, электрических щитков, компостных ям, туалетов и прочих неблаговидных хозяйственных объектов;
- Выполнять роль отпугивателя птиц, кротов и других непрошенных гостей огородов;
- Использоваться в качестве игровых домиков для детей или оригинальных беседок для чаепитий и отдыха;
- Преобразовываться в мангал, дровяную печь, рабочую кухонную зону;
- Совмещать в себе роль цветника;
- Быть местом для хранения садового инвентаря, инструментов и разных бытовых вещей.

Подготовка к строительству
Любая инженерная идея начинается с разработки проекта. При наличии достаточных знаний сделать схему мельницы можно и самостоятельно, но обычно исходные данные берутся уже готовыми из интернета, а потом адаптируются под личный вкус и финансовые возможности. В общем виде последовательность подготовительных работ выглядит следующим образом:
- Выбор места. Поскольку лопасти мельницы не являются фиксированными и будут находиться в постоянном движении, то территория должна быть очищена от лишней растительности (сухих кустов, веток, высокой травы), а исключать наличие поблизости деревьев, столбов и стационарных строений (сараев, колодцев, заборов). Для лучшей «ловли» ветра желательно выбирать землю, находящуюся на небольшом возвышении.

- Материалы. Здесь все зависит от бюджета, отведенного для создания мельницы. В классическом варианте используется дерево (брус, деревянная вагонка, рейки), но достаточно хорошо показывают себя в эксплуатации и другие стройматериалы: фанера, ДСП, пластик, кирпич, металл, рубероид, шифер. Для внешней отделки можно брать искусственный камень, измельченную каменную крошку, опилки, полиэтилен, морские ракушки – словом все, что есть под рукой и вписывается в формат дизайнерской задумки.
- Рабочие инструменты. Стандартный набор: рубанок, ножовка, шлифовальная машинка, дрель, шуруповерт, молоток, рубанок. Также понадобятся гвозди, шурупы, металлические уголки, киски для краски, ведра.
Порядок строительных работ
Рассмотрим пример изготовления «быстрой» мельницы, обшитой вагонкой. С такой конструкцией справится даже новичок, обладающий минимальными знаниями столярного дела. Пошаговая инструкция работ выглядит так:
Изготовление каркаса.
Для этого понадобится две квадратные заготовки, ширина которых отличается друг от друга приблизительно на 15% (например, нижняя со стороной 400 мм, верхняя – 300 мм). Основанием будет служить деталь, большая по размеру.Посредине каждой заготовки делается отверстие, куда устанавливается рейка высотой около 600-650 мм (исходя из приведенных выше размеров оснований) и прикручивается шурупами. После закрепления деталей делается замер боковых ребер полученной трапеции.

Затем нарезаются рейки нужной длины и прикручиваются шурупами по четырем боковинам основания. Каркасный остов готов.
Важно: поскольку каркас будет сверху обшиваться вагонкой, то исходниками для него могут быть разные б/у материалы: фанеру от старой мебели, сидения от табуреток, лисы ДСП и т.д.
Изготовление крыши.
Обшивка каркаса и крыши.
Вагонка нарезается кусками по ширине боковых сторон. Отмеренные заготовки прибиваются к рейкам-ребрам гвоздями или «садятся» на саморезы, для которых предварительно намечаются отверстия дрелью. Обшивка выполняется по горизонтали.

Треугольники кровли, наоборот, закрываются по вертикали – так мельница в готовом виде будет выглядеть визуально красивее. На угловые стыки накладывается декоративная планка. После окончания работ крыша скрепляется с корпусом.
Изготовление лопастей.
Внешний вид лопастей – личное дело вкуса и изобретательности каждого умельца. Основное правило: их вес должен составлять 10-15% от общего веса мельницы, иначе прочность конструкции будет недостаточной из-за излишнего давления на ось. Длина лопастей рассчитывается с таким учетом, чтобы пропеллеры не доставали до земли и могли свободно оборачиваться по окружности.
Самый простой вариант – использовать обрезки реек, соорудив на концах крестовидную форму или создав форму прямоугольников.
Сборка лопастей.
В центре несущих планок делается отверстие, куда вставляется длинный болт. После чего лопасти скрещиваются друг с другом, насаживаются на болт и фиксируются гайками.

По центру фронтальной части крыши также высверливается отверстие, куда вставляется подготовленная ветродувная крестовина.
Установка мельницы.
Готовая конструкция может ставиться на каменный или деревянный фундамент, а в случае, если мельница сама по себе достаточно устойчива, то просто на ровную землю.
Дополнительные детали
Чтобы мельница смотрелась красиво и была максимально похожа на свой «живой» прототип, необходимо уделить внимание декоративным деталям. В частности, сделать входную дверь, а также окошки на крыше, вырезав отверстия желаемой формы лобзиком.

Вот еще несколько идей, как придать постройке более оригинальный и привлекательный вид:
- Выкрасить стены и крышу краской – однотонной или скомбинировать два-три оттенка, придав конструкции яркий летний вид. Как вариант, можно применить трафаретную технику, используя для этого специальные бумажные заготовки и поролоновую губку;
- Покрыть поверхность мельницы лаком либо морилкой, придав глубину деревянным поверхностям;
- Установить светодиодную подсветку, проведя по периметру крыши или поместив мини-фонарики внутрь окон. Таким образом, будет достигнут двойной эффект: интересное освещение в вечернее время, плюс экономия электроэнергии;
- Расставить рядом декоративные садовые фигуры: гномов, корзинок, животных, птиц и т.д. Все, что сочетается с тематикой с общей ландшафтной задумкой. Хорошо сочетаются с деревом элементы ковки: заборы, столики, скамейки, ажурные навесы, цветочные подставки и другое.
Как видно, сделать своими руками мельницу, абсолютно несложно. Главное, иметь желание и свободное время для воплощения своих замыслов.
Видео-инструкция по постройке
landsovet.ru
Мельница своими руками для сада (46 фото): детали конструкции и этапы сборки

Одно из наиболее популярных у дачников изделий – мельница для сада своими руками сделанная из древесины
Увидев у соседа весело крутящийся ветряк, мы невольно задумываемся о том, чтобы сделать мельницу своими руками для сада, и чтобы была она не хуже, чем у соседа. От задумки до воплощения путь недолгий, главное запастись необходимым материалом, определиться с размерами, а как ее построить, мы вас научим.
Содержание
Первые шаги
Понимая, что не каждый из вас опытный столяр и грамотный инженер, мы решили провести пробный урок. Давайте построим декоративную ветряную мельницу небольшого размера, пусть это будет наша генеральная репетиция перед настоящим представлением. Создание маленькой копии поможет вам набить руку и избежать досадных ошибок при возведении масштабного проекта.

Мельница с ветрилом, который уравновешивает конструкцию крыльев и используется для поиска ветра в случае, если вы делаете вращающуюся модель
Естественно, нам понадобятся настоящие инструменты и материалы. Что следует приготовить?

Мельницы, которые предназначены для установки в саду, могут выполнять только декоративную функцию, а могут, помимо этого, использоваться для чего-нибудь еще – всё зависит от их типа и функционального назначения
Инструменты
- пила или лобзик
- шурупы
- шлифовальная машинка
- шайбы, болт (длину болта высчитываем, складывая толщину вагонки на скате крыши, и прибавляем к ней толщину двух реек для лопастей)
- металлический стержень
- гвозди
- дрель
- карандаш
- рулетка
- шуруповерт

Основные инструменты для изготовления мельницы
Материалы
для корпуса мельницы:
- лист фанеры, ДСП или широкая доска
- 4 деревянных бруска длина – 60-70 см, сечение 3х3 или 5х5
- деревянные рейки 2 шт., длина – 60-70 см, ширина 3 см
- любой материал для обшивки мельницы (вагонка, рейки)

Чаще всего декоративные мельницы для сада делают деревянными, потому что этот природный материал лучше всего способен вписаться в любой ландшафтный дизайн садового участка
- материал для планок лопастей (вагонка, рейки)
- деревянные уголки (длина 60-70 см, сторона 3 см)

Такая мельница смотрится уместно в любом саду, притягивая к себе внимание прохожих, и вызывает искренний интерес гостей, навестивших вас
для крыши
- лист фанеры, ДСП
- 3 рейки (длина вымеряется при сборе крыши, но не менее 50 см)
- саморезы
Подготовив исходные материалы, приступаем к выпиливанию деталей.

Схема крепления лопастей

Чертеж «тела» мельницы
- Из фанеры или ДСП выпиливаем два основания: нижнее 50х50 см и верхнее 40х40 см.
- Расчерчиваем на основаниях диагональный крест и в его центре просверливаем отверстия.
- С помощью саморезов крепим рейки к углам нижнего основания, отступив от каждого края 2-3 см.

Лучше всего установить мельницу на цементный помост или другой надежный материал, не проводящий влагу из почвы, например, декоративный камень или мощение
- Вставляем в отверстие дополнительную рейку, она поможет нам в сборке каркаса.
- Накладываем на вершины реек верхнее основание и закрепляем его на саморезы.
- Обшиваем каркас вагонкой (горизонтально), подгоняя каждую планку по ширине стороны, на которую она крепится, лишнее отпиливаем.

Мельница-домик для вашего ребенка
- Приступаем к строительству крыши. Выпиливаем из фанеры или ДСП два ската (равнобедренные треугольники). Размер сторон треугольников выбираем произвольно, но ориентируясь на гармоничное сочетание его с каркасом.

Алея из декоративных ветряков на вашем участке имитирует мини-ферму
- Соединяем скаты рейками по бокам и верху, чтобы получился объемный треугольник.
- Крепим крышу к основанию, прикручивая рейки саморезами.
- Проделываем в лицевом скате крыши отверстие.
- Собираем лопасти. Две рейки выкладываем крестовиной, проделываем сквозное отверстие в центре креста, по диаметру равное отверстию в крыше.

Яркий цвет мельницы привлечет еще больше внимание к вашему двору
- Пропускаем болт через отверстие в крестовине и отверстие в крыше. Закрепляем его шайбами с двух сторон и гайкой.
- Берем маленькие гвозди, заготовленные рейки для лопастей, и аккуратно прибиваем их на все четыре лопасти
- Обшиваем бока крыши вагонкой, вертикально или горизонтально, как вам больше нравится.

Эффектно смотрится декоративная мельница в живописном ландшафте на берегу реки
- Шлифуем обшивку мельницы.
- Закрываем стыки на ребрах мельницы деревянными уголками.
Совет! Форму лопасти можно составлять произвольно. Традиционные фигуры – трапеция или прямоугольник.

Лучшим окружением для деревянных поделок станет зеленая лужайка
Полезные советы
Понимая, что даже при наличии пошаговой инструкции у человека всегда могут возникнуть дополнительные вопросы, мы решили дополнить наш обзор полезными советами.

Для того, чтобы мельница приобрела оригинальный вид, можно ее задекорировать.
- из пород деревьев лучше всего брать сосну, она мягкая и теплая, хорошо поддается обработки и долго хранит приятный хвойный аромат
- для упорядочения работы сделайте чертеж декоративной мельницы и отмечайте на нем уже выполненные детали

Яркая декоративная мельница — украшение вашего дачного участка
- чтобы мельница прожила долго, обработайте деревянные части специальным составом, предохраняющим от влаги и древесных жуков
- используйте подручные материалы для украшения мельницы

Деревянная декоративная мельница займет почетное место на территории вашего участка
- не перегружайте лопасти мельницы, правильно рассчитайте их массу, чтобы они не завалили все сооружение

Для изготовления декоративных мельниц иногда используют металл, в таком случае ее форма отличается от деревянной мельницы
- устанавливайте основание мельницы на дополнительный подиум (цемент, камень, мощение), чтобы избежать гниения дерева от долгого соприкосновения с землей

Если размеры участка позволяют, то мельница-ветряк может не просто украшать ландшафт, а и выполнять определенную функцию
Теперь вы знаете, как сделать декоративную мельницу своими руками, но даже этот маленький макет может украсить ваш сад. Еще немного терпения, краски или мозаики, и ваша мельница превратится в произведение искусства.

Ажурная мельница — настоящее произведение искусства
Функции декоративной мельницы
Желание обустроить загородный участок приводит его хозяев к самым необычным идеям. Времена, когда дача ассоциировалась у нас только с ровными рядами грядок и фруктовых деревьев, ушли безвозвратно. Сегодня мы используем свои шесть соток и для отдыха семьи, и для дружеских вечеринок, и в качестве творческой мастерской.

Металлическая декоративная мельница в окружении цветов
На скромном клочке земли, стараниями его владельцев, вырастают сказочные королевства и фантастические пейзажи. Впрочем, чаще всего, темой декорирования сада становятся атрибуты деревенской жизни. Расписные колодцы, декоративные деревянные мельницы, фигурки гномов и лешего, огромные грибы и забавные животные поселяются среди грядок, создавая особое настроение.

Деревянная мельница — это элемент голландского стиля, поэтому для завершения образа отличным дополнением станут тюльпаны высаженные вокруг нее
Некоторые сооружения деревянной декоративной мельницы расширяют свое предназначения и с легкой руки хозяина превращаются в детский домик. В масштабных идеях мельница может стать частью игровой площадки, или сараем для хранения инструментов. У креативных хозяев мельница декоративная для сада становится стилизованной туалетной комнатой, а люди с инженерными навыками создают действующие модели мельниц.

Небольшая мельница в греческом стиле — внутри которой мини-домик
Естественно, что главная функция декоративной мельницы – это украшение для сада. Однако с помощью нее вы можете скрыть мелкие элементы инженерных коммуникаций, облагородив участок. Люк септика, вентиляционная труба, поливочный кран станут незаметными для ваших гостей, а сад получит стильный декоративный объект. Такие мельницы, как правило, не требуют больших затрат, выполняются в маленьких размерах и легко вписываются в любой ландшафт.

Декоративная мельница для сада, выполненная в металле, лучше смотрится, если ее выкрасить в яркий цвет, например, красный
Масштабные сооружения, в виде беседок и летних столовых, также выполняют сразу две функции: хозяйственную и декоративную. Однако их строительство оправданно на больших площадях. Кроме того, желательно, чтобы такие объекты сочетались с общим стилем загородного участка.

Декоративная мельница, выложенная из камня для хранения садового инвентаря
Из декоративной мельницы, дополненной боковыми ящиками, получается великолепный цветник. Она же служит прекрасным дополнением к искусственному водоему.

Возможно, у вас появится собственная идея строительства декоративной мельницы своими руками и ее рационального и художественного применения, а пока предлагаем посмотреть видео с уже готовыми проектами:
happymodern.ru
красивое украшение сада своими руками (110 фото)
В полнее естественно, что каждый хозяин, занимаясь благоустройством придомовой территории, желает сделать ее максимально привлекательной и эргономичной. Этого можно добиться, применяя самые разные приёмы ландшафтных стилистов. Можно разбить красивые клумбы и оригинальные цветники, возвести альпийскую горку или вырыть очаровательный прудик.
В качестве украшения могут также выступать скульптурные композиции и разнообразные инсталляции. Мельница для сада, размещённая в траве около небольшого водоёма, выглядит особенно стильно и самобытно.

Такое сооружение может выполнять как эстетическую функцию, играя роль одной из деталей садового декора, так и практическую, скрывая неприглядные урбанистические вещи. Последняя вариация наиболее важна для территории малой площади. Ведь ее тоже хочется преобразить и украсить.

Краткое содержимое статьи:
Достоинства декоративной мельницы
Мельница на участке – оригинальный элемент ландшафтного декора, передающий всю прелесть атмосферы сельского быта. Подобное украшение дарит ни с чем не сравнимое умиротворение и прекрасно декорирует приусадебную территорию. Но ярко выраженная эстетичность не мешает мельнице выполнять и практическую задачу. Например, она помогает скрыть канализационные люки, водопроводные и газовые вентили и т. п.
Для изготовления мельницы используют как дерево, так и камень. Высота такой постройки может быть различной – от 0,3 м до 2 м. Выбирая габариты, необходимо учесть площадь облагораживаемой территории. На небольшом участке огромная, малофункциональная конструкция будет смотреться нелепо.

Существуют и сооружения, размеры которых позволяют устроить внутри них полноценную беседку. Такое строение будет играть роль не только садового декора, но и уютного, комфортного места отдыха.

В среднегабаритных постройках довольно удобно хранить рабочий инвентарь. Другими словами, элегантная мельница может стать хорошей альтернативой непривлекательному сараю.

Наиболее привлекательно малая архитектурная форма с лопастями будет выглядеть на фоне искусственного или природного водоёма. Также уместно будет разместить мельницу у ручейка или искусственно созданного водопада. Недалеко можно установить скамейку или беседку, чтобы в вечерние часы заниматься релаксацией, смотря на водную гладь и наблюдая движение мельничных крыльев.

Советы по размещению
Конструкция мельницы для дачи может предполагать два типа крыльев: первый тип приводится в движение силой ветра, а второй – стационарные лопасти, которые остаются неподвижными. Обычно изделия с не крутящимися лопастными элементами выполняют чисто декоративную функцию.

Оба типа можно установить не только на берегу ручья или пруда, но и в тихих местах сада. Немаловажно грамотно выбрать габариты мельницы. Ведь неправильно подобранный размер конструкции может испортить дизайн всего ландшафта.

Ветряное сооружение будет отлично смотреться в любой части приусадебной территории. Даже самый неприметный уголок заиграет новыми красками, если разместить там подобную малую архитектурную форму. Мельница, окружённая зелёной травой, станет украшением любой части сада. Высаженные рядом растения, цветы и кусты только подчеркнут изящность сооружения.
Наиболее органично подобная малая архитектурная форма будет смотреться, если дом и все окружающие его постройки оформлены в деревенской стилистике, имитирующей старинные русские избы. Но, если территория обустроена в каком-либо современном дизайнерском решении, то такая конструкция на ней будет излишней.

Декоративная мельница возле ограждения выглядит просто чудесно, в особенности, если оно представляет собой стилизацию под плетёную изгородь. Подобная постройка также неплохо смотрится в сочетании с колодцем. Получившуюся картину уместно дополнить крестьянской телегой. А, если расположить мельницу рядом с декоративным мостиком, то можно добиться поистине потрясающего эффекта.

Помимо всего рассмотренного выше, для усиления эстетичных качеств ветреной постройки совместно с ней можно использовать скамейку из массива дерева или стилизованное деревянное колесо. В последнее можно высадить цветы – получится весьма оригинальная клумба.

Главное помнить, что, обустраивая участок в подобной стилистике, нельзя применять чёткие геометрические формы, строгие линии и острые углы. Для дизайна в сельском стиле характерен покой и мягкость. Все детали обязаны быть закруглёнными.

Территория вашего загородного коттеджа выдержана в японском или китайском стилевом направлении? Ветряная мельница идеально дополнит ландшафт. Как уже говорилось ранее, она не уместна лишь современных минималистических стилистик. Но необходимо учесть, что русская мельница не будет сочетаться с пейзажами Востока – здесь предпочтительнее подобрать модель в японо-китайском дизайне или стилизованную под пагоду.

Великолепно выглядит декор подобного типа на холмистой местности или на пригорке. В этом случае мельница будет выступать как своеобразная высотная доминанта вашей дачи. А если расположить возле декоративной постройки статуи героев сказок и легенд, то такая композиция будет смотреться поистине волшебно.

Практическое предназначение
На фото декоративной мельницы видно, что ее можно использовать в качестве домика для детских игр. Всем известно, как важно ребенку иметь свой уголок, где он является полноправным хозяином. Если вы решили адаптировать постройку под детский домик, не забудьте убедиться в устойчивости и надёжности такого сооружения.

Из каменной мельницы получится прекрасный мангал – она хорошо переносит высокие температуры и обладает отличной теплопроводностью.
Садовая мельница также неплохой способ избавиться от кротов. Вращение крыльев приводит к вибрации почвы, что не по нраву кротам.

Собачья конура – это еще одна вариация использования мельничного сооружения. Если строение расположено у водоёма, то в нем можно держать рыболовные снасти, инвентарь для очистки воды и др.
Рекомендации
Сегодня в моде мельницы, стилизованные под старину. Их можно приобрести в магазине или заказать в мастерской. Неплохой вариант — сделать декоративную мельницу своими руками.

Если вы решились изготовить сооружение собственноручно, то запомните, что подчас настоящее произведение искусства может получиться из обычных обрезков стройматериалов, которые остались после ремонта. Чертёж декоративной мельницы можно без труда найти в Интернете или начертить самим.

Сосна – это оптимальный материал для строительства ветряной постройки. Сосновая древесина имеет красивый внешний вид и низкую стоимость. Но она нуждается в обязательной обработке антисептическими составами.

Бесспорно, мельница – одна из самых живописных архитектурных форм. Она придаст вашему участку неординарности и индивидуальности. Поэтому, если вы сомневаетесь, какой декор выбрать – выбирайте мельницу.

Фото декоративной мельницы






























landshaftdizajn.ru
Ветряная мельница: схемы, чертежи
Эпоха земледелия канула в прошлое много веков назад, но это не значит, что все наработки того времени теперь ничего не значат. К примеру, сегодня пойдёт речь о том, как сделать ветряную мельницу своими руками.
Начать стоит с того, зачем это, вообще, нужно? Вряд ли кто-то при её помощи будет молоть пшено в муку. Да и выращиванием пшена занимаются профессиональные фермеры, у которых за все производственные процессы отвечает современная техника. Тем не менее всё больше дачников задаются вопросом, как сделать ветряную мельницу своими руками?

Объясняется подобный ажиотаж довольно-таки просто — ветряная мельница, которую можно легко сделать своими руками является великолепным элементом ландшафтного дизайна, который делает участок по-настоящему уникальным. Продать сад, у которого есть такая изюминка гораздо проще, чем участок, как две капли воды похожий на соседний.
В современном мире уникальность ценится превыше всего. Именно поэтому если вы решите сделать ветряную мельницу своими руками — это позволит преобразить ваш сад. К тому же при должном усердии и небольшом экскурсе в физику вы сможете использовать данное строение как источник энергии.
Внимание! Ветряную мельницу можно использовать в качестве электрогенератора.
Ветряная мельница на вашем дачном участке может не только быть элементом ландшафта, который вы сделали своими руками, но и преобразователем энергии ветра. Это позволит в значительной мере сэкономить семейный бюджет.
Дополнительные качества ветряной мельницы

Перед тем как выбрать место для установки ветряной мельницы, вы должны учесть, что данное сооружение, которое вы сделаете своими руками, может иметь несколько назначений:
- Ветряная мельница может скрыть ряд неприглядных мест вашего участка вроде канализационного люка.
- Некоторые ветряные мельницы, которые можно сделать своими руками, выполняются из лёгких материалов. Как результат удаётся минимизировать их габариты. Поэтому данные сооружения часто используют в качестве защитных колпаков для вентилей труб и других инженерных объектов.
- Сооружение можно использовать как домик для детских игр. Для этого понадобится немного укрупнить конструкцию, но ничего нереального здесь нет. Главное, сделать её устойчивой и не забыть про вход.
- В сооружении больших размеров, сделанном под мельницу своими руками, можно хранить разнообразный садовый инвентарь. По факту это будет подсобное помещение.
- Каменную мельницу можно также использовать как мангал.
- Данное сооружение при небольшой модификации можно применять как пугало для кротов. Достаточно вкопать ножки вглубь на 20 сантиметров, чтобы вибрации от конструкции, которые будут возникать при вращении лопастей, передавалась в землю.
Как видите, ветряной мельнице, которую вы сделаете своими руками можно найти множество применений, как элементу ландшафтного дизайна.
Роль ветряной мельницы в ландшафтном дизайне

Современный мир настолько разнообразен, что для того, чтобы участку быть самым лучшим, недостаточно простого ухода и ровных грядок — необходимо выделяться. При этом нужно всё делать с умом. Ведь ландшафтный дизайн — это сложная наука, которая учитывает множество нюансов.
К примеру, при выборе растительного покрова учитываются такие факторы, как:
- тень,
- влажность,
- сочетание с другими культурами,
- необходимые оросительные системы и т. д.
Одним из самых трендовых элементов ландшафтного дизайна на данный момент считается ветряная мельница. Самое же главное достоинство такого сооружения заключается в том, что конструкцию можно сделать своими руками.
Делаем ветряную мельницу своими руками
Выбираем место и подготавливаем его

Постройка ветряной мельницы — это куда более ответственное мероприятие, чем может показаться на первый взгляд. Нужно учесть множество факторов, чтобы получить по-настоящему стоящий элемент ландшафтного дизайна.
Лучше всего для установки подходит открытое пространство. Во-первых, здесь лопасти мельницы будут практически всегда вращаться, а во-вторых, собрать данную конструкцию на открытом пространстве гораздо проще, так как ничего не будет вам мешать.
После того как вы подберёте подходящее место для монтажа нужно будет убрать участок. Уберите все мешающие постройке кустики и пеньки. Если трава слишком высокая — срежьте её при помощи газонокосилки.
Землю перед установкой конструкции нужно тщательно разровнять. Только после этого вы сможете приступить к укладке фундамента, точнее, платформы. Чтобы выбрать правильное место, вы должны чётко представлять, как будет выглядеть ваша будущее сооружение.
Создаём план

В качестве примера возьмём элементарную конструкцию, которую при должной доле усилий сможет построить каждый человек. Всё начинается с создания плана:
- Нарисуйте эскиз макета.
- Посредством чертежа рассчитаете, какие размеры должны быть у каждой детали ветряной мельницы, которую вы хотите сделать своими руками.
- Выберите оптимальный материал, из которого будут сделаны основные элементы конструкции. Лучшим выбором считается сосна. Она обладает высокими эксплуатационными качествами. При этом её стоимость находится на приемлемом уровне.
После того как с планом и чертежом всё улажено можно приступать к непосредственному процессу сборки.
Подбор нужных для работы инструментов и материалов

Чтобы создать достойное сооружение вам понадобятся такие инструменты:
- Линейка для создания углов.
- Ручки, фломастеры, карандаши, циркуль, маркеры.
- Строительная рулетка.
- Дрель с набором разнокалиберных насадок.
- Шуроповёрт или отвёртка. Также для этой цели можно использовать обычную дрель со специальной насадкой.
- Молоток, пила, лобзик.
- Болты, гвозди, шайбы, саморезы, шурупы. Длина элементов напрямую зависит от того, насколько толстые доски вы будете использовать.
- Наждачная бумага для шлифовки элементов. Также можно использовать шлифовальную машинку.
С помощью этих инструментов вы сможете своими руками сделать отличную ветряную мельницу, которая станет прекрасным дополнением вашей концепции дачного ландшафта. Также для воплощения идеи вам понадобятся такие материалы:
- Чтобы сделать ветряную мельницу своими руками чаще всего используют фанеру или вагонку. Широкие доски отлично подходят для корпуса.
- Чтобы сделать стены своими руками используйте бруски.
- Для обшивки подойдёт любой материал.
- Чтобы сделать лопасти используйте металлические рейки или трубы.
- Уголки.
- Крышу можно сделать из фанеры. В качестве крепёжных элементов используйте рейки.
- Для того чтобы закрепить лопастной винт своими руками вам понадобится шпиль и подшипник.
После того как все материалы и инструменты будут собраны, вы сможете сделать ветряную мельницу своими руками.
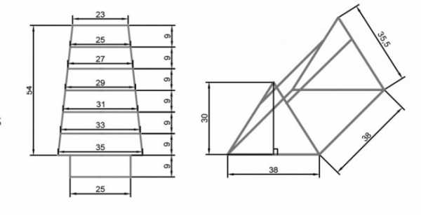
Разметка конструкции

После того как все чертежи сделаны, а нужный инвентарь собран, можно приступить непосредственно к разметке конструкции при помощи своих рук:
- Разметьте четыре квадрата на основании. Стороны каждого по 25 сантиметров. При этом каждый квадрат нужно поделить на четыре равных части. В середине делается отверстие.
- Начертите четыре блока для сторон. Детали лучше всего вырезать из цельных кусков дерева. Соотношение будет 35 на 54 см.
- Стены можно легко сделать своими руками в форме трапеции. Это придаст ветряной мельницы по-настоящему декоративный вид.
- Трапециевидные стены ветряной мельницы, которые вы будете делать своими руками, состоят из шести частей, которые должны быть надёжно прикреплены друг к другу. При этом каждая следующая часть меньше предыдущей на два сантиметра. Соответственно первая будет 35 см, а последняя 25.
- Для того чтобы конструкция обладала надёжностью нужно сделать прочный каркас. При использовании качественных материалов всё это можно осуществить своими руками.

- Для того чтобы сделать каркас своими руками вам понадобятся бруски. В сечении данные элементы будут соответствовать следующим параметрам 40 на 40 миллиметров. Для осуществления проекта вам понадобится целый комплект: восемь штук по 54 и 38 см, а также шесть штук 36 см.
- Чтобы сделать надёжный каркас своими руками также понадобится четыре бруска на 54 и четыре на 10 сантиметров. Сечение каждого элемента 30 на 30 мм.
- Создание крыши ветряной мельницы потребует от вас создания разметки при помощи лекала.
- Начертите линию на 38 см. Сделайте отступ ровно наполовину и начертите ещё одну на 30 см. Длина бокового шва треугольника 35,5 см. Согласно данному лекалу нужно обработать 10 листов. Они впоследствии будут выполнять роль скатов.
- Лопастной винт для ветряной мельницы нужно сделать своими руками как на схеме из элементов 45 на 15 мм. Всего будет четыре части, на каждой из которых нужно закрепить элементы с такими характеристиками: один на 91 см, 20 по 19, две по 45,5, четыре на восемь, 26 и 17.

- Прочертите два круга, диаметр каждого — 17 см.
После того, когда вы сделаете разметку ветряной мельницы своими руками — аккуратно вырежьте все элементы, отшлифуйте их, обработайте специальными составами и только после этого начинайте финальную сборку.
Обработка
Для пропитки дерева лучше всего использовать следующие составы: Пинотекст, Акватекс, Белинка.
Каждый из них смог себя зарекомендовать как надёжное средство для защиты дерева от атмосферных явлений и насекомых. Эти вещества позволят вам не беспокоиться о сохранности ветряной мельницы, собранной и установленной своими руками.
Важно! Пропитку нужно делать в 2-3 захода. Это гарантирует стойкость защиты. При этом каждый слой должен успеть просохнуть.
Сборка

После того как вы завершите обработку всех частей ветряной мельницы, можно будет приступить к её сборке своими руками. Просто следуйте этой инструкции, и вы всё сможете сделать самостоятельно:
- Скрепите боковые части при помощи реек.
- Чтобы сделать основание ветряной мельницы своими руками используйте два квадрата, у которых есть дырки посередине.
- Соедините основание и корпус ветряной мельницы саморезами.
- Сколотите два треугольника, основания которых равняются 38 см, а стороны 35 с половиной.
- По обеим сторонам прикрутите к треугольникам фанеру.
- Крышу нужно делать из двух частей. На каждую пойдёт по пять приготовленных заранее элементов.
- Вертушку ветряной мельницы сделайте своими руками при помощи деревянных реек.
- На концы лопастей закрепите короткие рейки и прикрутите круги в центре. После чего просверлите в середине дыры и установите шпильки. Тоже нужно сделать с торцом.
- Закрепите шпиль. Всю конструкцию скрепите гайками.
В конце наденьте крышку на корпус, который вы сделали своими руками и закрепите всё саморезами.
Подробный процесс сборки устройства ветряной мельницы вы можете увидеть на видео снизу.
Декорирование
После того как вы сделали ветряную мельницу исключительно благодаря своим рукам, необходимо придать ей соответствующий вид. Для этого можно использовать лак. Он придаст вашему сооружению завершённость.

Внимание! Если элементы из дерева обработаны не достаточно качественно, лучше использовать краску.
Чтобы придать ветряной мельнице дополнительный антураж её элементы можно покрасить разными цветами. Также можно добавить рисунки вроде цветов, бабочек или насекомых. Каждый из них легко делается своими руками, если использовать немного фантазии.
Итоги
Как видите, сделать ветряную мельницу под силу каждому. Главное, на начальных этапах начертить правильную разметку и подобрать хорошее место. Также заранее необходимо решить, какими уникальными качествами будет обладать сооружение.
bouw.ru
как сделать декоративную ветряную конструкцию из фанеры для сада
На дачном участке, кроме теплиц, цветочных клумб, дорожек, можно сделать другие полезные объекты. Например, декоративную мельницу своими руками. Но это не крупногабаритное сооружение, а всего лишь маленькая копия, которая сильно украсит сад. Разные модели конструкции можно заказать у мастеров или приобрести в магазине. Однако нужно потратить на изделие немалую сумму. Для хозяина дачи, умеющего работать с деревом, задача не станет сложной.
Польза постройки
Самая важная функция декоративной мельницы — создание благоприятной атмосферы и уюта на дачном участке. Конструкцией также можно оформить клумбы и сады, сделанные в европейском или старорусском стиле. Дизайнеры рекомендуют совмещать мельницу с другими объектами: плетеными заборами, лавочками и миниатюрными прудами.
Также декоративная мельница для сада поможет скрыть некоторые неэстетичные участки на дачном дворе, например, люки непривлекательные сантехнические коммуникации. Строение отлично сочетается с камнями, деревьями и цветами. Некоторые садоводы обустраивают мельницу цветочными клумбами, устанавливая красивые ящики по периметру конструкции. В любом случае мельница несет только пользу.
Другие умельцы изготавливают мельницу больших размеров и создают из нее беседку или игровой домик для детей. Также есть возможность смастерить из декоративного объекта складское помещение.
Из каких элементов состоит конструкция
Практически все модели декоративных мельниц состоят из одинаковых частей. Могут отличаться друг от друга технологией монтажа, к примеру: объекты из фанеры сооружаются по одной схеме, а из металла или кирпича — по другой. Перечень частей постройки:
- бетонная или кирпичная платформа;
- облегченный фундамент — возвышенность над платформой;
- каркас строения;
- крыша разной формы;
- деталь для вращения;
- сбалансированные лопасти.
Элементов конструкции не так много, но все они выполняют разные функции. Поэтому необходимо знать, для каких целей служит та или иная часть мельницы. Описание конструкции по деталям:
Платформа. Если поместить объект декора на землю, то через малое время произойдет разрушение постройки, поскольку влажность уничтожает древесный материал. Платформа должна делаться из бетона или кирпича — это стартовая площадка, на которой будет возводиться объект.- Фундамент. Этот элемент конструкции сооружается из кирпича. То есть надо сделать небольшой фундамент, который защитит строение от сырости. Основание предназначено и для хорошей устойчивости декоративного изделия.
- Скелет мельницы. Это не менее важная часть. Каркас в основном изготавливается из бруса или бревнышек. Скелет крыши надо сделать правильно, учитывая расположение окон и дверей. Затем конструкция обшивается фанерой или другим материалом.
- Крыша. Зачастую владельцы выбирают округлые шестиугольные крыши, поскольку мельница, по сути, имеет округлую форму. Тем не менее допускается любой вариант крыши. В качестве кровельного покрытия применяется мягкая кровля.
- Деталь вращения. Обычно такой элемент устанавливается изнутри крыши и состоит он из велосипедных подшипников и оси. Конструкция соединяется с лопастями, которые начинают вращаться за счет порывов ветра. Механизм вращения также можно соединить со всеми элементами мельницы, и вращаться будут не только лопасти, но и вся конструкция. Но для этого на ось монтируется ветрило. Рекомендуется также использовать велосипедные подшипники.
- Крылья (лопасти). Конструкция сооружается из любых подручных материалов, но проще сделать из фанеры или планок. Устанавливая крылья на ось, нужно позаботиться о балансировке и симметрии всех четырех деталей.
Рабочие принадлежности и материалы
Мельницу по традиции делают из дерева. Это обусловлено низкой ценой на материал. В остальном декоративное сооружение делается из металла, камня, пластика и так далее. Без какого материала и инструментов не обойтись:
брус;- толстые и тонкие листы фанеры;
- несколько цветов краски;
- мягкая черепица;
- антисептическое средство;
- щебень;
- велосипедный подшипник;
- перфоратор;
- кирпичи;
- дикий камень;
- песок;
- анкеры;
- цемент;
- арматура;
- металлическая ось;
лопата;- шурупы;
- лобзик;
- рулетка;
- строительный уровень;
- дрель с насадками «коронками»
- гайки и шайбы.
Мельница шестиугольной формы
Если владелец дачного участка знаком с электрическими инструментами и деревообработкой, то сборка конструкции не займет много времени и сил. Если за дело берется новичок, то следует придерживаться представленной инструкции. Тогда никаких проблем не возникнет.
Изготовление платформы
Чтобы выполнить этот шаг, надо подготовить материал. Как правило, платформа делается из бетона или природного камня. Первый вариант эффективней, поскольку прослужит длительное время. А в качестве декора можно применить тот же натуральный камень и обложить платформу. Ветряная мельница своими руками начинается со строительства платформы:
- Изначально делается котлован 100*100 см. Его глубина составляет 20 см. Предварительно выбирается ровная площадка, также важно, чтобы мельница на выбранном участке гармонично вписывалась в общий стиль сада.
- После чего изготавливается бетонная платформа. В сделанный котлован устанавливается решетка из арматуры. Ее можно найти у себя на даче или смастерить из арматуры с помощью сварки или проволоки. Потом устанавливается опалубка, которая должна быть выше уровня земли на 15 см.
- Далее готовится песок, щебень, вода и цемент. Желательно делать такое соотношение: 25% цемента, 25% щебня и 50% песка. Раствор замешивается в бетономешалке, доводя его до полужидкого состояния.
- Изготовленный раствор заливается в котлован. Поверхность бетона выравнивается мастерком. Нужно, чтобы залитый раствор дошел до уровня края опалубки.
В окончании надо выждать, пока бетонная платформа застынет.
Сооружение фундамента
После изготовления платформы возводится небольшой фундамент из кирпичей или шлакоблока. Основание сделать легко. Ведь это не фундамент под огромное многоэтажное здание. Поэтому требования к мини-фундаменту будут минимальными. Работа проделывается в несколько шагов:
- На платформе необходимо разметить периметр фундамента и промазать цементом.
- Далее на раствор выполняется кирпичная кладка.
- Высота фундамента должна составлять минимум 3 кирпича.
- Кладка всегда начинается с углов, и швы нижнего ряда перекрываются кирпичами верхнего ряда наполовину, чтобы кирпич перекрыл шов на 40—50%.
- Ровность стенок контролируется строительным уровнем.

По завершении кладки все швы забиваются раствором, чтобы не было никаких щелей.
Строительство шестиугольного каркаса и обшивки
А после возведения фундамента последует строительство каркаса — это самая важная часть всей конструкции. Важность заключается в симметрии всех сторон будущей декоративной мельницы. Поэтому каркас изготавливается ровным, иначе обшивка получится кривой, и вся конструкция потеряет свой красивый внешний вид. С чего нужно начинать:
- Вначале надо подготовить 6 брусков по одной длине и 10 перемычек. Размеры выбираются индивидуально. Задача — сделать цилиндр, только шестиугольной формы. С помощью шуруповерта закрепляется нижняя часть конструкции, а затем — верхняя. Берутся 2 бруска и соединяются перемычкой, затем следующий брусок соединяется другой перемычкой и так далее.
- После изготовления каркаса нужно приняться за обработку изделия антисептиками. Кисточкой наносится первичный слой. А после высыхания наносится вторичный слой. Это поможет продлить срок службы.
- На последнем этапе к фундаменту прикрепляется каркас. Он устанавливается на основании, а на нижних перемычках делаются отметины — это места под отверстия. Затем перфоратором проделываются дыры через дерево и кирпич. В отверстия устанавливаются анкеры и закручиваются. Такой способ существенно укрепит конструкцию.
- После чего вырезаются 6 прямоугольных кусков из фанеры. И один за другим прикручиваются шурупами к каркасу. Фанера также обрабатывается антисептиком.

Все деревянные элементы мельницы из фанеры обрабатываются антисептическим средством в несколько слов.
Возведение крыши
Можно сделать односкатную, двускатную, четырехугольную крышу и так далее. Но поскольку деревянная мельница имеет 6 углов, то логичнее соорудить шатровую крышу, которая также оснащена шестью углами. Процесс сборки шатровой крыши:
- Каждый угол крыши должен выходить на угол каркаса. Изготавливаются стропила одной длины количеством 6 штук. Делается 5 перемычек. Для закрепления используются металлические уголки и шурупы. Предварительно один край всех мини-стропил срезается под прямым углом. Для резки используется ножовка или лобзик.
- Перпендикулярно друг другу устанавливается пара стропил. Закрепляются уголками и шурупами. К ним присоединяются остальные балки. Верхняя точка крыши должна находиться строго по центру.
- Теперь для усиления конструкции прикручиваются перемычки. Их надо устанавливать немного ниже середины крыши. Брус вставляется между стропилами и с боков балок выполняется закручивание саморезов. Все очень просто.
- Чтобы закрепить верхнюю часть крыши, рекомендуется из куска цинка вырезать полосу. Ею надо обкрутить пик и закрутить саморезами.
В конце конструкция проверяется на прочность и обшивается фанерой.
Деталь для вращения лопастей
На этом шаге изготавливается внутренний механизм для вращения лопастей. Нужна ось и подшипники. Проще использовать велосипедные подшипники. Процесс изготовления механизма:
На каркасе проделывается отверстие, но в том месте, где находится брус. Туда вставляется ось и фиксируется гайками и шайбами.- Далее на другом конце оси проделывается та же процедура. Первой накручивается гайка, а затем — шайба. Останется маленькая часть оси с резьбой под подшипники.
- Надо сделать кольцо из дерева и плотно надеть его на велосипедные подшипники. Для этого применяется дрель с насадкой «коронка». Таких насадок много, и они имеют разный диаметр. Поэтому берется доска по толщине подшипников, которые находятся в специальном кольце. Вырезается круг диаметром 10 см. Затем в вырезанной части проделывается отверстие под внешний диаметр велосипедного подшипника.
- Вырезанная деревянная шайба насаживается на подшипник. Далее конструкция нанизывается на ось. Следом накидывается шайба. В конце выполняется закручивание гайки.
Можно придумать другой вариант. Потому что не у всех есть насадки «коронки», а без них сложно вырезать ровную деревянную шайбу.
Изготовление лопастей
Лопасти на мельнице имеют другое название — «крылья». Их количество составляет 4 штуки. Для изготовления таких изделий применяются тонкостенные фанерные листы. Необходимо на картоне сделать шаблон, по которому будут делаться «крылья». Пошаговое создание лопастей:
- Придумав форму лопастей, шаблон необходимо перенести на лист фанеры. Чтобы работа продвигалась быстрее, желательно использовать лобзик.
- Изготовив 4 лопасти, их надо прикрепить к деревянной шайбе. Важно установить «крылья» с одинаковым интервалом между собой.
- Итак, берется лопасть и приставляется к вращающему механизму. Затем саморезами выполняется закрепление детали. Такую работу надо проделать со всеми лопастями. Чтобы лопасти были более жесткими, на каждой из них необходимо прикрепить планки.

В окончании на фундамент и бетонную платформу монтируется природный камень. Мельница из дерева окрашивается предпочтительными цветами. Желательно использовать разнообразную палитру, а не красить конструкцию одним цветом.
По желанию рядом с мельницей можно сделать дополнительные декоративные объекты в виде цветочных клумб или лавочек. Постройку можно украсить окнами, дверьми, балконом. Необязательно все это изготавливать, достаточно сделать имитацию с помощью планок.
sotka.guru
декоративная, садовая, чертежи, схема, видео-инструкция, фото
Нет, борьба с ветряными мельницами не входит в наши планы: Дон Кихот может почивать на лаврах в одиночестве. Наша цель — строительство. Нам предстоит выяснить, из чего и как может быть построена декоративная мельница для сада своими руками.

Сегодня наши симпатии на стороне мельницы.
Не только красота
Понятно, что мельница не будет выполнять свою прямую функцию — молоть зерно. Очевидно, что основная цель ее сооружения — украсить дачный участок.
Однако есть ряд способов совместить приятное с полезным: декоративное сооружение может выполнять ряд дополнительных функций.
- Мельница скроет крышку канализационного люка или вентиляцию септика.
- Она может послужить миниатюрным хранилищем садового инструмента или детских игрушек.
Кстати: детей наверняка порадует это строение в их игровой зоне. У взрослых возникнет лишь одна серьезная проблема: придется долго объяснять функции и устройство прототипа.
- Строение может стать разновидностью декоративного фонарного столба: установленный на верхушке светильник превратит ваш ночной сад в подобие таинственной Нарнии неподалеку от выхода из некоего плательного шкафа.
- Наконец, мельница может вместить скрытый пульт управления освещением или воротами.

Для этого достаточно предусмотреть в ее конструкции дверку.
Материалы и решения
Итак, приступим. Поскольку о вкусах не спорят, мы не станем перебирать проекты и чертежи декоративной мельницы для сада своими руками; вместо этого сосредоточимся на технических решениях.
При строительстве мы используем природные материалы — древесину и некоторые продукты ее переработки. И из-за простоты их обработки, и потому, что в этом случае мельница будет выглядеть ближе к оригиналу.
Каким должно быть наше строение?
- Достаточно прочным, чтобы выдержать порывы ветра и активность младших членов семьи.
- Защищенным от гниения и ультрафиолета. Как известно, на солнечном свету дерево темнеет на срезе; процессы ферментации запускаются именно ультрафиолетовой частью спектра солнечного света.

На свету срез древесины темнеет.
- Надежно гидроизолированным от грунта. Если поставить деревянную конструкцию непосредственно на землю, через какое-то время загниют, не выдержав постоянного увлажнения и атаки насекомых, даже самые стойкие породы древесины.
- Наконец, выбранные вами чертежи мельницы для сада своими руками не должны содержать слишком широкой фронтальной проекции. Или, проще говоря, парусность строения не должна быть слишком большой; причем это относится как к башне, так и к лопастям. Не стоит забывать, что мы строим все-таки имитацию.
С учетом этих требований двинемся дальше.
Платформа
Она должна быть прочной и максимально массивной: чем ниже центр тяжести, тем устойчивее строение.
Из чего можно сделать основание?
- Из сшитой в щит шпунтованной доски камерной сушки. Щит будет скреплен выстроенными на нем стенками; дополнительно шпунтовые соединения можно проклеить казеиновым клеем или обычным силиконовым герметиком.

В отсутствие шпунтованной можно использовать обрезную доску; однако щели будут весьма заметны.
- Из фанеры толщиной 15 — 18 миллиметров. Вырезанная из нее платформа шлифуется со скруглением краев.
Не все виды фанеры одинаково полезны для наших целей. В широкой продаже можно найти прежде всего ФК и ФСФ, отличающиеся используемым для склейки слоев шпона связующим.
В первом случае используются карбамидные смолы, что обеспечивает безвредность материала вкупе с весьма скромной стойкостью к увлажнению. Во втором — довольно токсичные фенолформальдегидные смолы, делающие, однако, фанеру весьма водостойкой.
Совет: поскольку наша садовая мельница своими руками строится на улице, и там же будет стоять после окончания строительства, стоит остановиться на фанере ФСФ.

ФСФ отличается высокой водостойкостью.
Кроме того, в продаже можно встретить фанеру нескольких сортов.
| Сорт | Краткое описание |
| Е (элита) | Дефекты не допускаются. Допустимы лишь изменения в структуре древесины. |
| 1 | Длина покоробленности и/или трещин — не более 20 мм. |
| 2 | Допустимы трещины длиной не более 200 мм, вставки и просачивание клея с общей площадью до 2% от всего листа. |
| 3 | Помимо указанных выше дефектов, допускаются червоточины диаметром до 6 мм общим количеством не более 10 на 1 м2. Суммарное количество дефектов на лист — не более 9. |
| 4 | Помимо перечисленного, могут присутствовать выпавшие сучки и червоточины диаметром до 40 мм. Допускаются 5-миллиметровые дефекты кромок. |
Сорта фанеры.
Поскольку предстоящий нам объем закупок невелик, цена материала не будет играть особой роли в выборе. Очевидно, 1 — 2 сорта будут более предпочтительными. Однако зачастую их просто-напросто нельзя найти в продаже: качественная фанера редко пользуется большим спросом.
Что делать в этом случае?
- Дефекты шпаклюются акриловой шпаклевкой по дереву.
- После высыхания шпаклевки деталь шлифуется.
- Вместо лака она покрывается любой водо- и атмосферостойкой эмалью.
Ножки
Платформу, как мы помним, нежелательно ставить непосредственно на грунт: нужна гидроизоляция. Простой и изящный способ выполнить ее — прикрутить снизу либо пластиковые мебельные ножки, либо, в их отсутствие, четыре — пять коротких пластиковых канализационных труб диаметром 50 мм.
В последнем случае способ крепления труб будет довольно специфичным.
- Прикручиваем к основанию мельницы пластиковые заглушки соответствующего диаметра.
- Надеваем на них раструбами патрубки нужной длины.

Еще один вариант крепления ножек.
Стены
Здесь возможны несколько решений.
Сруб
Он сооружается из кругляка диаметром 30-50 мм. В этой роли могут выступить, к примеру, черенки лопат. Соединения — «в лапу»; для крепления используется любой столярный клей или опять-таки силиконовый герметик.
Кстати: сруб можно дополнительно зафиксировать нагелями из круглого карандаша. Они вставляются в засверленные отверстия на клей.

Здесь для той же цели использован оцинкованный пруток.
Каркасное строение
Каркас собирается из сухого елового или соснового бруска на оцинкованных уголках и обшивается нарезанными в размер бамбуковыми обоями. Углы закрываются узким деревянным уголком. Такая схема садовой мельницы своими руками хороша тем, что будет продуваться; при попадании внутрь воды она быстро испарится.

Лакированные бамбуковые обои наклеены на каркас из бруска.
Фанерные стенки
Вертикальные стенки тоже могут быть собраны из толстой фанеры.
В этом случае каркас не нужен: при толщине от 15 мм фанерные стенки соединяются встык.
- В 7 миллиметрах от края положенной плашмя детали сверлятся отверстия диаметром 4 мм. Дрель удерживается строго под прямым углом к плоскости.
- Отверстия раззенковываются 8-миллиметровым сверлом.
- Деталь прикладывается к торцу смежной детали, после чего та засверливается прямо через отверстия 3-миллиметровым сверлом.
- Соединение собирается на саморезах длиной 45 — 51 мм и диаметром 4 мм.
Внимание: приведенная инструкция актуальна для соединения под прямым углом. Если садовая декоративная мельница своими руками строится пятистенной или шестистенной, детали придется нарезать с косыми торцами с помощью лобзика или дисковой пилы с качающейся лыжей. Для соединения в этом случае используется только клей.

Шестистенная конструкция собрана на клею.
Крышка
Здесь тоже возможно несколько решений:
- Двух- или четырехскатная крыша на каркасе из бруска, выполненная все теми же бамбуковыми обоями. В этом случае в основании стоит предусмотреть отверстия для стока воды: в дождь наша мельница неизбежно будет собирать некоторое ее количество.
- Домик из толстой фанеры, соединенной встык.
Крылья
Они могут быть статичными или вращающимися. В любом случае, как мы уже говорили, высокая парусность нежелательна: крылья мельницы собираются из тонких (не более 1,5 см) реек на клеевых соединениях.
Как организовать вращение?
- Крестовина ветрила строгается на скос, таким образом, чтобы приклеенные рейки образовывали лопасти с углом атаки в 15-30 градусов к плоскости вращения.

Способ крепления крыльев к крестовине хорошо виден на фото.
- В качестве оси можно использовать целиком старый маломощный электромотор (например, от вентилятора). Ось вклеивается в просверленное в крестовине ветрила отверстие; статор мотора любым способом фиксируется в вырезе фронтальной стенки мельницы.
- Крылья тщательно балансируются. Малейший дисбаланс приведет к тому, что более тяжелое крыло будет выходить из нижней позиции лишь при сильных ветрах.
Защита от влаги
Чем можно защитить деревянное строение от воды?
- Акватекс — пропитка-антисептик с гидрофобизирующим эффектом и ультрафиолетовым фильтром — сохранит внешний вид натуральной древесины как минимум на 6 — 8 лет.
- Яхтный лак тоже исключительно стоек к действию воды и солнца.
- Крайне водостойким дерево может сделать пропитка обыкновенной олифой. Желательно предварительно подогреть ее на водяной бане: тогда древесина пропитается глубже.

Олифа — проверенное временем средство для защиты древесины.
Заключение
Разумеется, в небольшом материале нами описана лишь небольшая часть возможных решений (см.также статью «Как обустраивается мастерская на даче с минимальными затратами»).
Как всегда. дополнительную тематическую информацию читатель найдет в видео в этой статье. Успехов!
Добавить в избранное Версия для печатиОтличная статья 0
9dach.ru
Декоративная мельница для участка своими руками
Приветствую своих читателей, сегодня мы поговорим о том, как изготовить декоративную мельницу своими руками. Много людей ищут способ украсить свои приусадебные или дачные участки, поэтому данная статья надеюсь, им поможет. Мы подробно рассмотрим изготовление декоративной мельницы своими руками по чертежам и схемам.
В качестве основного материала для каркаса будем использовать брус 50 х 50 мм. Материал для обшивки применим — имитацию бруса. После строительства и отделки различных строений, обрезков этих материалов всегда остается в избытке, поэтому не нужно их выбрасывать или сжигать – мы найдем им применение. Ну а если данных материалов у вас нет, приобретите их или замените имеющимися.
После изготовления мельница будет иметь следующие габаритные размеры: ширина основания 1000 мм, высота до конька 2300 мм, диаметр лопастей 2500 мм, высота от основания до конечной точки лопасти в вертикальном положении 3000 мм. Лопасти имеют подшипниковый механизм, благодаря чему при нормальном ветре они легко вращаются. Если хотите изменить размеры, то прочитайте всю статью и смотрите чертежи.

Изготовление мельницы начинаем с устройства основания. Напиливаем брус по данным размерам и запиливаем углы на диагоналях. Сборку производим саморезами, основание необходимо прочное и надежное, если конструкция немного качается не переживайте, после обшивки она закрепится намертво.
Затем изготавливаем каркас стойки по чертежу: напиливаем брус, соблюдая размеры и углы запиливания, собираем стойку при помощи саморезов.

После этого делаем каркас верхней части стойки: напиливаем брус, собираем.

Далее необходимо все эти три каркаса соединить. Основание и стойку скрепите саморезами или мебельными болтами. При их сборке соблюдайте симметрию, стойку расположите строго посредине основания так, чтобы расстояние от стойки до конца стороны основания со всех четырех сторон были равными.

Сейчас давайте изготовим механизм вращения лопастей и установим его. Он состоит из двух подшипников, оси, двух хомутов, гаек и шайб. Подшипники рекомендуем применять закрытые, мы использовали 303 закрытый, внутренний посадочный диаметр 17 мм, диаметр наружной обоймы 47 мм. Ось имеет соответственно диаметр 17 мм, что вполне хватает для веса лопастей.

Купите или найдите ровный отрезок прутка, подберите подшипники и отдайте любому токарю, он подгонит диаметр под подшипники и нарежет резьбу под выбранные гайки. Хомуты изготовлены самостоятельно из оцинкованной жести, вырежете и согните хомут под подшипник, сделайте отверстия под саморезы и все, хомут готов, так вы можете сами его сделать под любой номер подшипника. В деревянном основании сделайте две канавки, посадочные, глубиной не менее 3 мм, они предотвратят продольное перемещение подшипников, зафиксируют его положение вдоль оси. Закрепляем готовый механизм к нашей сборке каркаса саморезами.

Далее начинаем обшивку каркаса имитацией бруса.

Не забывайте что при обшивке боковых сторон основания, имитация на две стороны имеет размер 1000 мм, а на две другие 1040 мм, так как перекрывает их торцы.
Обшивку верхней горизонтальной плоскости начинайте от средины к краю, выступающую часть будет легко удалить, все углы 45 градусов.

Обшивку стойки начинайте с лицевой стороны, можете не снимать размеры, а применять имитацию, большей длинны. После полной обшивки стороны к боковым поверхностям (на правую и левую стороны) приложите правило или ровный кусок имитации и с внутренней стороны отчертите то, что необходимо отрезать, и отпилите лишнее. Затем обшейте заднюю сторону, потом боковые поверхности. Обшивку производите по очереди, сначала одну полностью, и т.д. Соединение делайте при помощи саморезов, желательно по четыре в одну деталь, так соединение будет прочным, а мы избежим качки конструкции.

Верхнюю часть стойки совместите с верхом стойки и скрутите при помощи саморезов, затем обшиваем ее. Если ранее материал мы укладывали горизонтально, то при облицовке этого каркаса материал укладываем вертикально, с небольшим выпуском в низ. Под ось вращения, в обшивке просверлите отверстие большего диаметра, чем диаметр оси. При облицовке правой и левой стороны не забывайте верхний запил делать под углом 45 градусов, или опускайте ниже имитацию, чтобы она не мешала обшивке кровли. Далее обшиваем верх. Вот и все, облицовка закончена, теперь четко вырисовываются очертания нашей мельницы.

Теперь необходимо закрыть стыки при помощи раскладки. Ее можно купить или изготовить самим из любого материала толщиной 10 мм. Ширина раскладки для боковых сторон применяем 50 мм, а для конька, ветровой доски и раскладки на горизонтальную плоскость основания применяем раскладку шириной 80 мм. Если хотите ее выделить, то после выпиливания и подгонки, перед креплением можете заколеровать ее, наложив темное лакокрасочное покрытие. Подгонка раскладки – процесс долгий и нудный, но необходим для скрывания неровности выпиливания углов. Затем крепим ее, теперь все выглядит более красиво и ровно.

Для украшения можете изготовить окна и двери, точнее их имитацию. Можете в нашей сборке прорезать отверстия под окна и двери, а затем прикрепить сами элементы немного большего диаметра, чем отверстия, а можете не выпиливать. Мы под дверь не вырезали, а под окошки выпилили отверстия при помощи лобзика, чтобы создать полную иллюзию окон. Материал для дверей и окон применяйте любой, имеющийся в наличии, но чистая древесина при изготовлении мелких деталей ломается, поэтому применяйте либо тонкую фанеру или ламинат, эти материалы искусственные и более прочные, а для защиты от расслаивания покройте водонепроницаемыми составами, если будите всю мельницу покрывать лаком, то данные детали хорошо прокрасьте. После изготовления и подгонки, приклейте или прибейте их.

Далее изготавливаем лопасти. Для направляющего каркаса применяем брус 75 х 75 мм. Выпиливаем согласно чертежа и скрепляем при помощи саморезов. Для того чтобы лопасти имели уклон посадочные в каркасе делаем с уклоном 10 градусов. Посадочное отверстие для оси высверливаем строго под углом 90 градусов к поверхности каркаса и строго по центру, его вы найдете при помощи отрисовки диагоналей.

Изготавливаем сами лопасти. Для направляющих лопастей применяем брус 30 х 75 мм, а для поперечин доску толщиной 25 мм, шириной 12 мм, или удобной вам. Доски можете прикрепить одного размера, а затем отчертить диагонали и отпилить лишнее. Имейте в виду: для правильной балансировки все четыре лопасти изготовьте идентичными, абсолютно одинаковыми, с одинаковым количеством и размером материала.
Прикрепляем четыре лопасти к каркасу при помощи саморезов или двух мебельных болтов на одну лопасть, это позволит быструю разборку при необходимости. Одеваем лопасти на ось и закрепляем с помощью шайбы и гайки. Для скрытия гайки сделаем накладку из доски 40-50 мм. Для гайки, при помощи сверла или стамески сделаем углубление. Закрепим ее.

Вот и все, наша мельница готова. На изготовление ее вы затратите около недели, если не спеша, а если вы профессионал, работающий давно с деревом и имеющий весь инструмент для деревообработки, то вы затратите не более 1-2 дней.
Надеюсь, вам понравился данный материал, и он будет вам полезен, неделя на изготовление это ничто, по сравнению с красотой которую вы создадите, только на написание данной статьи у меня ушла неделя. Если вам непонятны какие-нибудь узлы, напишите в комментариях, постараюсь описать более подробно.

Нажмите на кнопки в низу статьи, расскажите о ней друзьям в соцсетях. Если вы хотите точное пошаговое описание изготовления какого-нибудь изделия из древесины с чертежами, оставляйте свои пожелания не стесняйтесь. На этом все, до свидания!
my-wood-house.ru


Платформа. Если поместить объект декора на землю, то через малое время произойдет разрушение постройки, поскольку влажность уничтожает древесный материал. Платформа должна делаться из бетона или кирпича — это стартовая площадка, на которой будет возводиться объект.
брус;
лопата;
На каркасе проделывается отверстие, но в том месте, где находится брус. Туда вставляется ось и фиксируется гайками и шайбами.