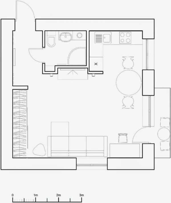
Π§Π΅ΡΡΡΠ΅Ρ ΠΊΠΎΠΌΠ½Π°ΡΠ½Π°Ρ Ρ ΡΡΡΠ΅Π²ΠΊΠ° β ΡΠ΅ΠΌΠΎΠ½Ρ ΠΊΡΡ Π½ΠΈ ΠΈ Π·Π°Π»Π° Π² ΠΊΠ²Π°ΡΡΠΈΡΠ΅ ΠΏΠ»ΠΎΡΠ°Π΄ΡΡ 44 ΠΊΠ². ΠΌ.
ΠΠ»Π°Π½ΠΈΡΠΎΠ²ΠΊΠΈ 1,2,3,4-Ρ ΠΊΠΎΠΌΠ½Π°ΡΠ½ΠΎΠΉ ΠΊΠ²Π°ΡΡΠΈΡΡ Π² Ρ ΡΡΡΠ΅Π²ΠΊΠ°Ρ
ΠΡΠΈ ΠΏΠΎΠΊΡΠΏΠΊΠ΅ ΠΊΠ²Π°ΡΡΠΈΡΡ ΡΠ»Π΅Π΄ΡΠ΅Ρ ΠΎΠ±ΡΠ°ΡΠ°ΡΡ Π²Π½ΠΈΠΌΠ°Π½ΠΈΠ΅ Π½Π΅ ΡΠΎΠ»ΡΠΊΠΎ Π½Π° Π΅Ρ ΡΠ΅Π½Ρ, Π½ΠΎ ΠΈ Π½Π° ΠΏΠ»Π°Π½ΠΈΡΠΎΠ²ΠΊΡ. ΠΡΠΎΠ±ΠΎΠ΅ Π²Π½ΠΈΠΌΠ°Π½ΠΈΠ΅ ΡΡΠ΅Π±ΡΠ΅ΡΡΡ ΡΠ΄Π΅Π»ΠΈΡΡ ΡΠΏΠ°Π»ΡΠ½ΠΎΠΉ ΠΊΠΎΠΌΠ½Π°ΡΠ΅ β Ρ ΠΎΡΠΎΡΠΎ, Π΅ΡΠ»ΠΈ ΠΎΠ½Π°Β Π±ΡΠ΄Π΅Ρ ΠΌΠ°ΠΊΡΠΈΠΌΠ°Π»ΡΠ½ΠΎ ΡΠ΄Π°Π»ΡΠ½Π½ΠΎΠΉ ΠΎΡ Π²Ρ ΠΎΠ΄Π½ΠΎΠΉ Π΄Π²Π΅ΡΠΈ. ΠΡΠΈ ΡΠ°ΠΊΠΎΠΌ ΡΠ°ΡΠΏΠΎΠ»ΠΎΠΆΠ΅Π½ΠΈΠΈ Π²ΡΠ΅ ΠΏΠΎΡΡΠΎΡΠΎΠ½Π½ΠΈΠ΅ Π·Π²ΡΠΊΠΈ, ΠΊΠΎΡΠΎΡΡΠ΅ ΠΈΡΡ ΠΎΠ΄ΡΡ Ρ ΠΊΠΎΡΠΈΠ΄ΠΎΡΠ½ΠΎΠΉ ΠΏΠΎΠ΄ΡΠ΅Π·Π΄Π½ΠΎΠΉ Π»Π΅ΡΡΠ½ΠΈΡΡ, Π½Π΅ Π±ΡΠ΄ΡΡ Π±Π΅ΡΠΏΠΎΠΊΠΎΠΈΡΡ Π²Π»Π°Π΄Π΅Π»ΡΡΠ΅Π² ΠΆΠΈΠ»ΡΡ. ΠΡΠΎΠΌΠ΅ ΡΡΠΎΠ³ΠΎ, Ρ ΠΎΡΠΎΡΠΈΠΌ ΡΠ΅ΡΠ΅Π½ΠΈΠ΅ΠΌ Π΄Π»Ρ ΡΠΏΠ°Π»ΡΠ½ΠΈ Π±ΡΠ΄Π΅Ρ Π½ΠΈΡΠ°, Π³Π΄Π΅ ΠΌΠΎΠΆΠ½ΠΎ ΡΠ΄Π΅Π»Π°ΡΡ Π³Π°ΡΠ΄Π΅ΡΠΎΠ±Π½ΡΡ (ΠΏΡΠΈ Π³Π»ΡΠ±ΠΈΠ½Π΅ ΠΌΠ΅Π½ΡΡΠ΅ ΡΠ΅ΠΌ 120 ΡΠΌ ΡΠ΄ΠΎΠ±Π½Π΅Π΅ Π±ΡΠ΄Π΅Ρ ΡΠ΄Π΅Π»Π°ΡΡ ΡΠΊΠ°Ρ-ΠΊΡΠΏΠ΅). Π‘Π΅ΠΉΡΠ°Ρ ΠΌΡ ΠΏΠΎΠ΄ΡΠΎΠ±Π½ΠΎ ΡΠ°ΡΡΠΌΠΎΡΡΠΈΠΌ ΡΠΈΠΏΠΎΠ²ΡΠ΅ ΠΏΠ»Π°Π½ΠΈΡΠΎΠ²ΠΊΠΈ ΠΊΠ²Π°ΡΡΠΈΡ Π² Ρ ΡΡΡΡΠ²ΠΊΠ°Ρ ΠΈ Π²Π°ΡΠΈΠ°Π½ΡΡ ΠΈΡ ΠΎΡΠΎΡΠΌΠ»Π΅Π½ΠΈΡ.
ΠΠ΄Π½Π° ΠΈΠ· ΡΠΈΠΏΠΎΠ²ΡΡ
ΠΏΠ»Π°Π½ΠΈΡΠΎΠ²ΠΎΠΊ ΠΊΠ²Π°ΡΡΠΈΡΡ Π² Ρ
ΡΡΡΡΠ²ΠΊΠ°Ρ
ΠΡΡΠΈΡΡΠ°ΠΆΠ½ΡΠ΅ ΠΏΡΠΎΠ΅ΠΊΡΠ½ΡΠ΅ Π΄ΠΎΠΌΠ°, Π½Π°Π·ΡΠ²Π°Π΅ΠΌΡΠ΅ Β«Ρ ΡΡΡΡΠ²ΠΊΠΈΒ», Π²ΠΏΠ΅ΡΠ²ΡΠ΅ ΠΏΠΎΡΠ²ΠΈΠ»ΠΈΡΡ Π² ΡΠ΅ΡΠ΅Π΄ΠΈΠ½Π΅ 1960-ΡΡ Π³ΠΎΠ΄ΠΎΠ². Π ΡΠΎ Π²ΡΠ΅ΠΌΡ Π² Π³ΠΎΡΠΎΠ΄Π°Ρ ΡΡΠΎΡΠ»Π°Β ΠΎΡΡΡΠ°Ρ ΠΏΡΠΎΠ±Π»Π΅ΠΌΠ° Π½Π΅Ρ Π²Π°ΡΠΊΠΈ ΠΆΠΈΠ»ΡΡ, Π½ΠΎ Π±Π»Π°Π³ΠΎΠ΄Π°ΡΡ ΡΠ°Π·ΡΠ°Π±ΠΎΡΠ°Π½Π½ΠΎΠΌΡ ΠΌΠ΅ΡΠΎΠ΄Ρ Π±ΡΡΡΡΠΎΠ²ΠΎΠ·Π²ΠΎΠ΄ΠΈΠΌΡΡ Β Π·Π΄Π°Π½ΠΈΠΉ, ΡΡΠΎΡ Π²ΠΎΠΏΡΠΎΡ Π±ΡΠ» ΡΠ΅ΡΡΠ½.Β ΠΡΠ΅Π³ΠΎ Π½Π΅ΡΠΊΠΎΠ»ΡΠΊΠΎ ΠΌΠ΅ΡΡΡΠ΅Π² β ΠΈ Π΄ΠΎΠΌ Π² Π½Π΅ΡΠΊΠΎΠ»ΡΠΊΠΎ ΡΡΠ°ΠΆΠ΅ΠΉ Π³ΠΎΡΠΎΠ²! ΠΠ³ΠΎ ΡΡΡΠΎΠΈΠ»ΠΈ ΡΠΆΠ΅ ΠΈΠ· Π³ΠΎΡΠΎΠ²ΡΡ Π±Π»ΠΎΠΊΠΎΠ², ΠΏΠΎΡΡΠΎΠΌΡ ΠΎΠ½ΠΈ ΠΈ Π½Π°Π·ΡΠ²Π°Π»ΠΈΡΡ Π±ΡΡΡΡΠΎΠ²ΠΎΠ·Π²ΠΎΠ΄ΠΈΠΌΡΠΌΠΈ. Π‘ Π½ΠΎΠ²ΡΠΌ Π²ΠΈΠ΄ΠΎΠΌ ΡΡΡΠΎΠΈΡΠ΅Π»ΡΡΡΠ²Π° ΠΏΡΠΈΡΠ»ΠΈ ΠΈΠ·ΠΌΠ΅Π½Π΅Π½ΠΈΡ ΠΈ Π² ΠΏΡΠΎΠ΅ΠΊΡΡ Π³ΠΎΡΠΎΠ΄ΡΠΊΠΈΡ ΠΊΠ²Π°ΡΡΠ°Π»ΠΎΠ². ΠΠ΄Π½ΠΎΠ²ΡΠ΅ΠΌΠ΅Π½Π½ΠΎ ΠΏΠ»Π°Π½ΠΈΡΠΎΠ²Π°Π»Π°ΡΡ ΡΠ΅Π»Π°Ρ ΠΈΠ½ΡΡΠ°ΡΡΡΡΠΊΡΡΡΠ°. Π ΠΊΠ°ΠΆΠ΄ΠΎΠΌ ΠΌΠΈΠΊΡΠΎΡΠ°ΠΉΠΎΠ½Π΅ ΡΡΡΠΎΠΈΠ»ΠΈΡΡ ΡΡΠ°Π·Ρ ΡΠ²ΠΎΠΈ Π΄Π΅ΡΡΠΊΠΈΠ΅ ΡΡΡΠ΅ΠΆΠ΄Π΅Π½ΠΈΡ (ΡΠΊΠΎΠ»Ρ, Π΄Π΅ΡΡΠΊΠΈΠ΅ ΡΠ°Π΄Ρ, ΠΌΠ°Π³Π°Π·ΠΈΠ½Ρ ΠΈ Ρ.Π΄.).
Π‘ΡΠ°Π½Π΄Π°ΡΡΠ½ΡΠΉ 5-ΡΡΠ°ΠΆΠ½ΡΠΉ Π΄ΠΎΠΌ ΡΠΎΠ²Π΅ΡΡΠΊΠΎΠΉ ΡΠΏΠΎΡ
ΠΈΠΠ΅ΡΠ½ΡΡΡΡΡ ΠΊ ΠΎΠ³Π»Π°Π²Π»Π΅Π½ΠΈΡΠ‘ΠΎΠ΄Π΅ΡΠΆΠ°Π½ΠΈΠ΅ ΠΌΠ°ΡΠ΅ΡΠΈΠ°Π»Π°
ΠΠ»Π°Π½ΠΈΡΠΎΠ²ΠΊΠ° ΠΎΠ΄Π½ΠΎΠΊΠΎΠΌΠ½Π°ΡΠ½ΠΎΠΉ ΠΊΠ²Π°ΡΡΠΈΡΡ Π² Ρ ΡΡΡΡΠ²ΠΊΠ΅
Π ΠΊΠ²Π°ΡΡΠΈΡΠ°Ρ 60-Ρ Π³ΠΎΠ΄ΠΎΠ², ΠΊΠΎΠ½Π΅ΡΠ½ΠΎ, Π±ΡΠ»ΠΎ Π½Π΅ Π²ΡΡ ΡΠ΄ΠΎΠ±Π½ΠΎ: ΠΌΠ°Π»Π΅Π½ΡΠΊΠΈΠ΅ ΠΊΡΡ Π½ΠΈ- 6-7 ΠΊΠ². ΠΌ, ΡΠΌΠ΅ΠΆΠ½ΡΠ΅ ΠΊΠΎΠΌΠ½Π°ΡΡ, ΡΠΎΠ²ΠΌΠ΅ΡΡΠ½Π½ΡΠΉ ΡΠ°Π½ΡΠ·Π΅Π». ΠΠΎ Π²ΡΠ΅ΠΌΡ ΡΡΠΎΠΌΡ Π΅ΡΡ ΠΈ Π΄ΠΎΠ²ΠΎΠ»ΡΠ½ΠΎ Π½ΠΈΠ·ΠΊΠΈΠ΅ ΠΏΠΎΡΠΎΠ»ΠΊΠΈ, Π²ΡΡΠΎΡΠΎΠΉ ΠΎΡ 2.45 ΠΌ Π΄ΠΎ 2.55 ΠΌ. ΠΡΠ»ΠΈ Π²Ρ Π²ΡΡ-ΡΠ°ΠΊΠΈ ΡΡΠ°Π»ΠΈ ΠΎΠ±Π»Π°Π΄Π°ΡΠ΅Π»Π΅ΠΌ ΡΠ°ΠΊΠΎΠ³ΠΎ ΡΠ°ΡΠΈΡΠ΅ΡΠ°, ΡΠΎ ΠΎΡΠΎΠ±ΠΎΠ³ΠΎ ΠΏΠΎΠ²ΠΎΠ΄Π° Π΄Π»Ρ Π±Π΅ΡΠΏΠΎΠΊΠΎΠΉΡΡΠ²Π° Π½Π΅Ρ, ΡΠ°ΠΊ ΠΊΠ°ΠΊ Π½Π° ΡΠ΅Π³ΠΎΠ΄Π½ΡΡΠ½ΠΈΠΉ Π΄Π΅Π½Ρ Π΅ΡΡΡ Π²ΠΏΠΎΠ»Π½Π΅ Π΄ΠΎΡΡΡΠΏΠ½ΡΠ΅ ΡΠΏΠΎΡΠΎΠ±Ρ ΠΏΡΠ΅Π²ΡΠ°ΡΠΈΡΡ ΠΌΠΈΠ½ΡΡΡ ΡΡΠΎΠΉ ΠΊΠ²Π°ΡΡΠΈΡΡ Π² ΠΏΠ»ΡΡΡ.
ΠΡΠΈ ΠΏΠΎΠΌΠΎΡΠΈ ΠΏΡΠ°ΠΊΡΠΈΡΠ½ΡΡ ΠΈΠ΄Π΅ΠΉ ΠΌΠΎΠΆΠ½ΠΎ ΠΏΡΠ΅ΠΎΠ±ΡΠ°Π·ΠΈΡΡ Β«Π±Π°Π±ΡΡΠΊΠΈΠ½ΠΎ Π½Π°ΡΠ»Π΅Π΄ΡΡΠ²ΠΎΒ» Π² ΡΠ΄ΠΎΠ±Π½ΡΠΉ ΠΈ ΡΡΡΠ½ΡΠΉ ΡΠ³ΠΎΠ»ΠΎΠΊ. Π Π°ΡΡΠΌΠΎΡΡΠΈΠΌ ΡΠ°ΠΌΡΡ ΠΏΡΠΎΡΡΡΡ ΠΎΠ΄Π½ΠΎΠΊΠΎΠΌΠ½Π°ΡΠ½ΡΡ ΠΊΠ²Π°ΡΡΠΈΡΡ.
Π‘ΡΠ°Π½Π΄Π°ΡΡΠ½Π°Ρ ΠΏΠ»Π°Π½ΠΈΡΠΎΠ²ΠΊΠ° ΠΎΠ΄Π½ΠΎΠΊΠΎΠΌΠ½Π°ΡΠ½ΠΎΠΉ ΠΊΠ²Π°ΡΡΠΈΡΡ Π² Ρ
ΡΡΡΡΠ²ΠΊΠ΅Π ΠΊΠ²Π°ΡΡΠΈΡΠ΅-Ρ ΡΡΡΡΠ²ΠΊΠ΅ Ρ ΠΎΠ΄Π½ΠΎΠΉ ΠΊΠΎΠΌΠ½Π°ΡΠΎΠΉ Π½Π΅ ΡΠ΄Π°ΡΡΡΡ ΠΎΠ±ΡΡΡΡΠΎΠΈΡΡ ΠΎΡΠ΄Π΅Π»ΡΠ½ΡΡ ΡΠΏΠ°Π»ΡΠ½Ρ. Π ΡΠΎΠΆΠ°Π»Π΅Π½ΠΈΡ, ΠΊΠΎΠΌΠ½Π°ΡΠ° Π±ΡΠ΄Π΅Ρ ΠΌΠ½ΠΎΠ³ΠΎΡΡΠ½ΠΊΡΠΈΠΎΠ½Π°Π»ΡΠ½ΠΎΠΉ: ΠΈ Π³ΠΎΡΡΠΈΠ½ΠΎΠΉ, ΠΈ ΠΊΠ°Π±ΠΈΠ½Π΅ΡΠΎΠΌ, ΠΈ ΡΠΏΠ°Π»ΡΠ½ΠΎΠΉ ΠΊΠΎΠΌΠ½Π°ΡΠΎΠΉ, ΠΈ Π΄Π°ΠΆΠ΅ Π΄Π΅ΡΡΠΊΠΎΠΉ. ΠΡ ΠΊΡΠΎΠ²Π°ΡΠ΅ΠΉ ΠΈ ΠΏΡΠΈΠΊΡΠΎΠ²Π°ΡΠ½ΡΡ ΡΡΠΌΠ±ΠΎΡΠ΅ΠΊ ΡΠΎΠΆΠ΅ Π»ΡΡΡΠ΅ ΠΎΡΠΊΠ°Π·Π°ΡΡΡΡ. ΠΠΎ ΠΊΠ°ΠΊ ΡΠΎΠ³Π΄Π°Β ΡΠ΄Π΅Π»Π°ΡΡ ΡΠ°ΠΊΡΡ ΠΊΠΎΠΌΠ½Π°ΡΡ ΡΡΡΠ½ΠΎΠΉ ΠΈ Ρ ΠΎΡΡ Π±ΠΎΠ»Π΅Π΅-ΠΌΠ΅Π½Π΅Π΅ ΡΠ΄ΠΎΠ±Π½ΠΎΠΉ?
ΠΠ΅Π·Π°ΠΌΠ΅Π½ΠΈΠΌΡΠΌΠΈ ΠΏΠΎΠΌΠΎΡΠ½ΠΈΠΊΠ°ΠΌΠΈΒ Π² ΡΠ°ΠΊΠΎΠΌ ΠΆΠΈΠ»ΠΈΡΠ΅ ΠΏΠΎΡΠ»ΡΠΆΠ°Ρ ΡΡΠ°Π½ΡΡΠΎΡΠΌΠ΅ΡΡ, ΠΊΠΎΡΠΎΡΡΠ΅ Π±ΡΠ»ΠΈ ΡΠΈΡΠΎΠΊΠΎ ΡΠ°ΡΠΏΡΠΎΡΡΡΠ°Π½Π΅Π½Ρ Π²ΡΡ Π² ΡΠ΅Ρ ΠΆΠ΅ 60-Ρ .
ΠΠ°ΠΈΠ±ΠΎΠ»Π΅Π΅ ΠΏΠΎΠΏΡΠ»ΡΡΠ½ΠΎΠΉ ΡΡΠΈΡΠ°Π΅ΡΡΡ Π΄ΠΈΠ²Π°Π½-ΠΊΡΠΎΠ²Π°ΡΡ, ΠΊΠΎΡΠΎΡΠ°Ρ ΠΎΠ±Π»Π°Π΄Π°Π΅Ρ ΡΠ°ΠΌΡΠΌΠΈ ΡΠ°Π·Π»ΠΈΡΠ½ΡΠΌΠΈ ΡΠΎΡΠΌΠ°ΠΌΠΈ: Β«ΠΊΠ½ΠΈΠΆΠΊΠ°Β», Β«ΡΠ°ΡΠΊΠ»Π°Π΄ΡΡΠΊΠ°Β», Π΄ΠΈΠ²Π°Π½-ΠΊΡΠΎΠ²Π°ΡΠΈ, ΠΈΠΌΠ΅ΡΡΠΈΠ΅ Π²ΡΠ΄Π²ΠΈΠΆΠ½ΠΎΠΉ ΠΌΠ΅Ρ Π°Π½ΠΈΠ·ΠΌ ΠΈ Ρ ΠΎΡΠΊΠΈΠ΄ΡΠ²Π°ΡΡΠΈΠΌΠΈΡΡ Π±ΠΎΠΊΠΎΠ²ΡΡΠΊΠ°ΠΌΠΈ. ΠΠΎ, Π±Π΅Π·ΡΡΠ»ΠΎΠ²Π½ΠΎΠ΅ Π»ΠΈΠ΄Π΅ΡΡΡΠ²ΠΎΒ Π½ΡΠΆΠ½ΠΎ ΠΎΡΠ΄Π°ΡΡ Π΄ΠΈΠ²Π°Π½Ρ Π³ΠΈΠΏΠ΅ΡΡΡΠ°Π½ΡΡΠΎΡΠΌΠ΅ΡΡ. Π Π½ΡΠΌ ΠΎΡΠ³ΠΈΠ±Π°Π΅ΡΡΡ ΠΏΠΎΡΡΠΈ Π²ΡΡ, ΡΡΠΎ Π΅ΡΡΡ β Ρ Π»ΡΠ³ΠΊΠΎΡΡΡΡ ΠΌΠΎΠΆΠ½ΠΎ ΡΠ±ΠΈΡΠ°ΡΡ ΡΠΏΠΈΠ½ΠΊΡ, ΠΏΠΎΠ΄Π»ΠΎΠΊΠΎΡΠ½ΠΈΠΊΠΈ, ΠΏΠΎΠ΄ΡΡΠΊΠΈ ΠΈ Ρ.ΠΏ.
ΠΠΈΠ²Π°Π½-ΡΡΠ°Π½ΡΡΠΎΡΠΌΠ΅ΡΠΡΠΎΠΌΠ΅ ΡΠ°ΠΊΠΈΡ ΠΌΠ½ΠΎΠ³ΠΎΡΡΠ½ΠΊΡΠΈΠΎΠ½Π°Π»ΡΠ½ΡΡ Π΄ΠΈΠ²Π°Π½ΠΎΠ², Π½Π΅ ΠΎΠ±ΠΎΠΉΡΠΈΡΡ ΠΈ Π±Π΅Π· ΡΠ°Π·Π΄Π²ΠΈΠΆΠ½ΡΡ ΡΡΠΎΠ»ΠΎΠ², ΡΡΠ΅Π»Π»Π°ΠΆΠ΅ΠΉ ΠΈ Π»ΡΠ³ΠΊΠΈΡ ΠΏΠΎΠ»ΠΎΡΠ΅ΠΊ ΡΠ°Π·Π½ΡΡ Β Π²ΠΈΠ΄ΠΎΠ². Π£Π΄Π°ΡΠ½ΡΠΌ ΡΠ΅ΡΠ΅Π½ΠΈΠ΅ΠΌ Π±ΡΠ΄ΡΡ ΠΈ ΡΠ°Π·Π΄Π²ΠΈΠΆΠ½ΡΠ΅ Π΄Π²Π΅ΡΠΈ.Β ΠΠΎΡ, ΠΏΠΎΠΆΠ°Π»ΡΠΉ, ΠΈ Π²Π΅ΡΡ ΠΎΡΠ½ΠΎΠ²Π½ΠΎΠΉ Π°ΡΡΠΎΡΡΠΈΠΌΠ΅Π½Ρ ΠΌΠ΅Π±Π΅Π»ΠΈ Π΄Π»Ρ ΠΊΠ²Π°ΡΡΠΈΡ ΠΏΠΎΠ΄ΠΎΠ±Π½ΠΎΠΉ ΠΏΠ»Π°Π½ΠΈΡΠΎΠ²ΠΊΠΈ.
ΠΡΠΎΡΡΠΎΠΉ ΡΠ°Π·Π΄Π²ΠΈΠΆΠ½ΠΎΠΉ ΡΡΠΎΠ»Π‘ΡΠ°Π²Π½ΠΈΡΠ΅Π»ΡΠ½ΠΎ Π½Π΅Π±ΠΎΠ»ΡΡΠ°Ρ ΠΏΠ»ΠΎΡΠ°Π΄Ρ Π²ΡΠ·ΡΠ²Π°Π΅Ρ Π½Π΅Ρ Π²Π°ΡΠΊΡ ΠΏΡΠΎΡΡΡΠ°Π½ΡΡΠ²Π° Π² ΠΊΠ²Π°ΡΡΠΈΡΠ°Ρ Ρ ΠΎΠ΄Π½ΠΎΠΉ ΠΊΠΎΠΌΠ½Π°ΡΠΎΠΉ, Π° ΡΠΆ ΡΠ΅ΠΌ Π±ΠΎΠ»Π΅Π΅ Π² Π½Π°ΡΠΈΡ Ρ ΡΡΡΡΠ²ΠΊΠ°Ρ . ΠΡΠΈΠ΄ΡΡΡΡ ΠΏΡΠΈΠ»ΠΎΠΆΠΈΡΡ ΡΡΠΈΠ»ΠΈΡ Π΄Π»Ρ Π²ΡΡΠ²ΠΎΠ±ΠΎΠΆΠ΄Π΅Π½ΠΈΡ ΠΊΠ°ΠΆΠ΄ΠΎΠ³ΠΎ ΡΠ°Π½ΡΠΈΠΌΠ΅ΡΡΠ°Β ΠΆΠΈΠ»ΠΎΠ³ΠΎ ΠΏΡΠΎΡΡΡΠ°Π½ΡΡΠ²Π°. ΠΠΎΠΆΠ½ΠΎΒ ΠΏΡΠΈΠ±Π΅Π³Π½ΡΡΡ ΠΊ ΡΠ°ΠΊΠΎΠΌΡ ΠΏΡΠΈΡΠΌΡ, ΠΊΠ°ΠΊ ΡΠ²Π΅Π»ΠΈΡΠ΅Π½ΠΈΠ΅ ΠΏΠ»ΠΎΡΠ°Π΄ΠΈ ΠΊΠΎΠΌΠ½Π°ΡΡ ΠΈΠ»ΠΈ ΡΠ°Π½ΡΠ·Π»Π° ΠΈ ΠΊΡΡ Π½ΠΈ Π·Π° ΡΡΡΡ ΡΠ°ΡΡΠΈΡΠ΅Π½ΠΈΡ ΠΊΠΎΡΠΈΠ΄ΠΎΡΠ°.
ΠΡΡΠ΅ΠΊΠ»ΠΈΠ² ΠΈ ΡΡΠ΅ΠΏΠ»ΠΈΠ² Π±Π°Π»ΠΊΠΎΠ½, Π²Ρ ΠΌΠΎΠΆΠ΅ΡΠ΅ ΡΠΎΠ·Π΄Π°ΡΡ ΠΎΡΠ΅Π½ΡΒ ΡΠ΄ΠΎΠ±Π½ΠΎΠ΅ ΠΌΠ΅ΡΡΠΎ. ΠΡΠ΅ Π»ΡΡΡΠ΅, Π΅ΡΠ»ΠΈΒ ΡΡΠ° Π·ΠΎΠ½Π° ΡΡΠ°Π½Π΅Ρ ΠΆΠΈΠ»ΠΎΠΉ ΠΏΠΎ Π·Π°ΡΠ°Π½Π΅Π΅ ΡΠ°Π·ΡΠ°Π±ΠΎΡΠ°Π½Π½ΠΎΠΌΡ ΠΈ ΡΡΠ²Π΅ΡΠΆΠ΄ΡΠ½Π½ΠΎΠΌΡ ΠΏΡΠΎΠ΅ΠΊΡΡ. ΠΠΎΠΆΠ½ΠΎ ΠΏΠΎΠΌΠ΅ΡΡΠΈΡΡ ΡΠ°ΠΌ, Π½Π°ΠΏΡΠΈΠΌΠ΅Ρ, ΠΊΡΠ΅ΡΠ»ΠΎ-ΠΊΡΠΎΠ²Π°ΡΡ.
ΠΡΠΈΠΌΠ΅Ρ Π΄ΠΈΠ·Π°ΠΉΠ½Π° ΠΎΠ΄Π½ΠΎΠΊΠΎΠΌΠ½Π°ΡΠ½ΠΎΠΉ Ρ
ΡΡΡΡΠ²ΠΊΠΈΠΠ΅ΡΠ½ΡΡΡΡΡ ΠΊ ΠΎΠ³Π»Π°Π²Π»Π΅Π½ΠΈΡΠΠ»Π°Π½ΠΈΡΠΎΠ²ΠΊΠ° Π΄Π²ΡΡ ΠΊΠΎΠΌΠ½Π°ΡΠ½ΠΎΠΉ ΠΊΠ²Π°ΡΡΠΈΡΡ Π² Ρ ΡΡΡΡΠ²ΠΊΠ°Ρ
ΠΠ±Π»Π°Π΄Π°ΡΠ΅Π»ΡΠΌ Β«Ρ ΡΡΡΡΠ²ΠΎΠΊΒ» Ρ Π΄Π²ΡΠΌΡ ΠΊΠΎΠΌΠ½Π°ΡΠ°ΠΌΠΈ Π² Π΄ΠΎΠΌΠ΅ ΠΏΠΎΠ²Π΅Π·Π»ΠΎ Π±ΠΎΠ»ΡΡΠ΅. Π’Π°ΠΌ ΡΠΆΠ΅ Π΅ΡΡΡ ΠΏΠ΅ΡΡΠΎΠ½Π°Π»ΡΠ½Π°Ρ ΡΠ΅ΡΡΠΈΡΠΎΡΠΈΡ, ΠΊΠΎΡΠΎΡΠ°Ρ ΠΌΠΎΠΆΠ΅Ρ Π±ΡΡΡ ΠΏΠΎΠ»Π½ΠΎΡΠ΅Π½Π½ΠΎΠΉ ΡΠΏΠ°Π»ΡΠ½Π΅ΠΉ.
ΠΠ°Π»ΠΊΠΎΠ½ ΠΌΠΎΠΆΠ½ΠΎ ΠΏΡΠΈΡΠΏΠΎΡΠΎΠ±ΠΈΡΡ ΠΏΠΎΠ΄ ΠΊΠ°Π±ΠΈΠ½Π΅Ρ, ΠΈ Π΅ΡΠ»ΠΈ Π΄Π΅Π½Π΅ΠΆΠ½ΡΠ΅ ΡΡΠ΅Π΄ΡΡΠ²Π° ΠΏΠΎΠ·Π²ΠΎΠ»ΡΡΡ, ΡΠΎ ΠΏΠ»ΠΎΡΠ°Π΄Ρ Π»ΡΡΡΠ΅ ΡΠ²Π΅Π»ΠΈΡΠΈΡΡ (Π½Π΅ Π·Π°Π±ΡΠ²Π°Ρ ΠΎ Π½Π΅ΠΎΠ±Ρ ΠΎΠ΄ΠΈΠΌΠΎΡΡΠΈΒ ΡΠ°Π·ΡΠ°Π±ΠΎΡΠΊΠΈ Π°ΡΡ ΠΈΡΠ΅ΠΊΡΠΎΡΡΠΊΠΎΠ³ΠΎ ΠΏΡΠΎΠ΅ΠΊΡΠ° Π΄Π»Ρ ΡΠ²Π΅Π»ΠΈΡΠ΅Π½ΠΈΡ Π±Π°Π»ΠΊΠΎΠ½Π° ΠΈ ΡΠΎΠ³Π»Π°ΡΠΎΠ²Π°Π½ΠΈΡ Π΅Π³ΠΎ Π² Π½ΡΠΆΠ½ΡΡ ΠΈΠ½ΡΡΠ°Π½ΡΠΈΡΡ ). ΠΠ»Π°Π³ΠΎΠ΄Π°ΡΡ ΡΠ°ΠΊΠΎΠΌΡ ΡΠΏΠΎΡΠΎΠ±Ρ ΠΌΠΎΠΆΠ½ΠΎ ΠΏΠΎΠ»ΡΡΠΈΡΡ Π΄ΠΎΠΏΠΎΠ»Π½ΠΈΡΠ΅Π»ΡΠ½ΡΠΉ ΠΌΠ΅ΡΡΠ°ΠΆ ΡΠ°Π±ΠΎΡΠ΅ΠΉ Π·ΠΎΠ½Ρ. ΠΡΠ»ΠΈ Π±Π°Π»ΠΊΠΎΠ½ ΠΎΡΡΠ°Π²ΠΈΡΡ Π½Π΅Π·Π°ΡΡΠ΅ΠΊΠ»ΡΠ½Π½ΡΠΌ, ΡΠΎ ΠΌΠΎΠΆΠ½ΠΎ ΡΠ΄Π΅Π»Π°ΡΡ ΠΎΡΠ΄Π΅Π»ΡΠ½ΡΠΉ Π²ΡΡ ΠΎΠ΄ Ρ ΠΊΡΡ Π½ΠΈ.
ΠΠ²ΡΡ ΠΊΠΎΠΌΠ½Π°ΡΠ½ΡΠ΅Β Β«Ρ ΡΡΡΡΠ²ΠΊΠΈΒ» ΠΈΠΌΠ΅ΡΡ ΡΠ°Π·Π½ΡΠ΅ ΡΠΈΠΏΡ ΠΏΠ»Π°Π½ΠΈΡΠΎΠ²ΠΊΠΈ: Β«ΡΠ°ΡΠΏΠ°ΡΠΎΠ½ΠΊΠ°Β» ΠΈ Β«ΡΡΠ°ΠΌΠ²Π°ΠΉΒ».
ΠΠ»Π°Π½ΠΈΡΠΎΠ²ΠΊΠ° Π΄Π²ΡΡ
ΠΊΠΎΠΌΠ½Π°ΡΠ½ΠΎΠΉ Ρ
ΡΡΡΡΠ²ΠΊΠΈ ΠΏΠΎ ΡΠΈΠΏΡ Β«ΡΠ°ΡΠΏΠ°ΡΠΎΠ½ΠΊΠ°Β»ΠΠ° ΡΠ΅ΡΡΠ΅ΠΆΠ΅ ΠΏΠΎΠΊΠ°Π·Π°Π½Π° Π½Π°ΠΈΠ±ΠΎΠ»Π΅Π΅ Π²ΡΠ³ΠΎΠ΄Π½Π°Ρ ΠΏΠΎ ΡΠ΄ΠΎΠ±ΡΡΠ²Ρ ΡΠ°ΡΡΡΠ°Π½ΠΎΠ²ΠΊΠ° ΠΌΠ΅Π±Π΅Π»ΠΈ, Ρ ΠΎΡΡ ΠΈ Π² ΡΠ°ΠΊΠΎΠΌ Π²ΠΈΠ΄Π΅ ΡΠ²ΠΎΠ±ΠΎΠ΄Π½ΠΎΠ³ΠΎ ΠΏΡΠΎΡΡΡΠ°Π½ΡΡΠ²Π° ΠΎΡΡΠ°ΡΡΡΡ ΠΎΡΠ΅Π½Ρ ΠΌΠ°Π»ΠΎ. ΠΠ°ΠΊ ΡΠ°Π· ΠΏΠΎ ΡΡΠΎΠΉ ΠΏΡΠΈΡΠΈΠ½Π΅ Π±Π°Π»ΠΊΠΎΠ½ ΠΌΠΎΠΆΠ΅ΡΒ ΡΡΡΠ΅ΡΡΠ²Π΅Π½Π½ΠΎ ΠΎΠ±Π»Π΅Π³ΡΠΈΡΡ ΠΏΡΠΎΠ±Π»Π΅ΠΌΡ Π½Π΅Ρ Π²Π°ΡΠΊΠΈ ΠΏΡΠΎΡΡΡΠ°Π½ΡΡΠ²Π°. ΠΡΠ»ΠΈ ΠΎΠ½ Π±ΡΠ΄Π΅Ρ ΡΡΠ΅ΠΏΠ»ΡΠ½, ΡΠΎ ΠΏΠΎΡΠ²ΡΡΡΡ Π΅ΡΡ ΠΈ Π½Π΅Π΄ΠΎΡΡΠ°ΡΡΠΈΠ΅ ΠΌΠ΅ΡΡΡ ΠΆΠΈΠ»ΡΡ, Π½Π° ΠΊΠΎΡΠΎΡΡΡ ΠΏΡΠΈ ΠΆΠ΅Π»Π°Π½ΠΈΠΈ ΠΌΠΎΠΆΠ½ΠΎ ΡΠ°Π·ΠΌΠ΅ΡΡΠΈΡΡ Π΅ΡΠ΅ ΡΡΠΎ-Π½ΠΈΠ±ΡΠ΄Ρ (ΡΡΠ°Π»Π΅ΡΠ½ΡΠΉ ΡΡΠΎΠ»ΠΈΠΊ, ΠΌΠ΅ΡΡΠΎ Π΄Π»Ρ ΡΠ°Π±ΠΎΡΡ ΠΈ Ρ.Π΄.).
ΠΡΠΎΠ΅ΠΊΡ Π΄ΠΈΠ·Π°ΠΉΠ½Π° ΠΈΠ½ΡΠ΅ΡΡΠ΅ΡΠ° 2-Ρ
ΠΊΠΎΠΌΠ½Π°ΡΠ½ΠΎΠΉ Ρ
ΡΡΡΡΠ²ΠΊΠΈΠΡΠΈ ΡΠ°Π·ΠΌΠ΅ΡΠ΅ ΡΠΏΠ°Π»ΡΠ½ΠΎΠΉ ΠΊΠΎΠΌΠ½Π°ΡΡ 2,40Ρ 5.50 ΠΏΠΎ ΡΠΈΠΏΡ Β«ΡΡΠ°ΠΌΠ²Π°ΠΉΒ» Π²ΠΏΠΎΠ»Π½Π΅ ΠΌΠΎΠΆΠ½ΠΎ ΡΠ°Π·ΠΌΠ΅ΡΡΠΈΡΡ Π΄Π²ΡΡΠΏΠ°Π»ΡΠ½ΡΡ ΠΊΡΠΎΠ²Π°ΡΡ. Π’ΠΎΠ»ΡΠΊΠΎ Π²ΡΡ ΡΡΠΎ Π΄ΠΎΡΡΠ°Π²ΠΈΡ Π½Π΅ΠΊΠΎΡΠΎΡΡΠ΅ ΡΡΡΠ΄Π½ΠΎΡΡΠΈ ΠΏΡΠΈ ΡΠ±ΠΎΡΠΊΠ΅ ΠΈ Π»ΡΠ³ΠΊΠΎΠΌ ΠΏΠ΅ΡΠ΅Π΄Π²ΠΈΠΆΠ΅Π½ΠΈΠΈ. ΠΡΠ»ΠΈΡΠ½ΡΠΌ ΡΠ΅ΡΠ΅Π½ΠΈΠ΅ΠΌ Ρ ΡΠ°ΠΊΠΈΠΌ Π²ΠΈΠ΄ΠΎΠΌ ΠΏΠ»Π°Π½ΠΈΡΠΎΠ²ΠΊΠΈ ΡΡΠ°Π½Π΅Ρ ΡΠΎΠΎΡΡΠΆΡΠ½Π½ΡΠΉ ΠΏΠΎΠ΄ΠΈΡΠΌ Ρ ΠΏΠΎΠ»Π½ΠΎΡΠ΅Π½Π½ΡΠΌΠΈ Π²ΡΠ΄Π²ΠΈΠΆΠ½ΡΠΌΠΈ ΡΡΠΈΠΊΠ°ΠΌΠΈ Π΄Π»Ρ Ρ ΡΠ°Π½Π΅Π½ΠΈΡ Π±Π΅Π»ΡΡ ΠΈ ΠΏΠΎΡΡΠ΅Π»ΡΠ½ΡΡ ΠΏΡΠΈΠ½Π°Π΄Π»Π΅ΠΆΠ½ΠΎΡΡΠ΅ΠΉ. ΠΠ° ΠΏΠΎΠ»Ρ ΠΏΠΎ ΡΡΠΎΡΠΎΠ½Π°ΠΌ ΠΌΠ°ΡΡΠ°ΡΠ° ΡΠ΄Π°ΡΠ½ΠΎ Π±ΡΠ΄ΡΡ ΡΠΌΠΎΡΡΠ΅ΡΡΡΡ ΡΠ²Π΅ΡΠΈΠ»ΡΠ½ΠΈΠΊΠΈ.
ΠΠ»Π°Π½ΠΈΡΠΎΠ²ΠΊΠ° 2-Ρ
ΠΊΠΎΠΌΠ½Π°ΡΠ½ΠΎΠΉ Ρ
ΡΡΡΡΠ²ΠΊΠΈ ΠΏΠΎ ΡΠΈΠΏΡ Β«ΡΡΠ°ΠΌΠ²Π°ΠΉΒ»ΠΠ°ΠΏΡΠΎΡΠΈΠ² ΠΊΡΠΎΠ²Π°ΡΠΈ ΠΌΠΎΠΆΠ½ΠΎ ΠΎΠ±ΡΡΡΡΠΎΠΈΡΡ ΡΠΊΠ°Ρ-ΠΊΡΠΏΠ΅ ΠΈΠ»ΠΈ ΠΎΠ±ΠΎΡΡΠ΄ΠΎΠ²Π°Π½Π½ΡΡ Π³Π°ΡΠ΄Π΅ΡΠΎΠ±Π½ΡΡ, Π³Π΄Π΅ ΡΠ΄ΠΎΠ±Π½Π΅Π΅ Π²ΡΠ΅Π³ΠΎ Ρ ΡΠ°Π½ΠΈΡΡ ΠΎΠ΄Π΅ΠΆΠ΄Ρ ΠΈ ΠΏΡΠΎΡΠΈΠ΅ ΠΏΡΠΈΠ½Π°Π΄Π»Π΅ΠΆΠ½ΠΎΡΡΠΈ: Π³Π»Π°Π΄ΠΈΠ»ΡΠ½ΡΡ Π΄ΠΎΡΠΊΡ, ΠΏΡΠ»Π΅ΡΠΎΡ ΠΈ ΠΏΡΠΎΡΠΈΠ΅ Π½Π΅ΠΎΠ±Ρ ΠΎΠ΄ΠΈΠΌΡΠ΅ Π²Π΅ΡΠΈ. ΠΡΠΎΠΌΠ΅ ΡΡΠΎΠ³ΠΎ, ΠΌΠΎΠΆΠ½ΠΎ ΡΠ΄Π΅Π»Π°ΡΡ ΠΈ ΡΡΠ°Π»Π΅ΡΠ½ΡΠΉ ΡΡΠΎΠ»ΠΈΠΊΒ β Π½ΡΠΆΠ½ΠΎ Π²ΡΠ΅Π³ΠΎ Π»ΠΈΡΡ ΠΏΡΠΎΠΈΠ·Π²Π΅ΡΡΠΈ Π·Π°ΠΌΠ΅Π½Ρ ΡΡΠ°ΡΠΎΠ³ΠΎ ΡΡΠ°Π½Π΄Π°ΡΡΠ½ΠΎΠ³ΠΎ ΠΏΠΎΠ΄ΠΎΠΊΠΎΠ½Π½ΠΈΠΊΠ°, ΡΠ²Π΅Π»ΠΈΡΠΈΠ² ΠΏΡΠΈ ΡΡΠΎΠΌ ΡΠΈΡΠΈΠ½Ρ Π½ΠΎΠ²ΠΎΠ³ΠΎ.Β Π ΠΏΠ΅ΡΠ΅Π΄ Π²Π°ΠΌΠΈ ΡΠΆΠ΅ β ΡΡΡΠ½Π°Ρ, ΠΊΠΎΠΌΡΠΎΡΡΠ½Π°Ρ ΡΠΏΠ°Π»ΡΠ½Π°Ρ Π·ΠΎΠ½Π°.
ΠΠ΅ΡΠ½ΡΡΡΡΡ ΠΊ ΠΎΠ³Π»Π°Π²Π»Π΅Π½ΠΈΡΠΠ»Π°Π½ΠΈΡΠΎΠ²ΠΊΠ° ΡΡΡΡ ΠΊΠΎΠΌΠ½Π°ΡΠ½ΠΎΠΉ ΠΊΠ²Π°ΡΡΠΈΡΡ Π² Ρ ΡΡΡΡΠ²ΠΊΠ°Ρ
ΠΠ°ΠΊ ΠΏΡΠ°Π²ΠΈΠ»ΠΎ, ΡΡΡΡ ΠΊΠΎΠΌΠ½Π°ΡΠ½Π°Ρ Ρ ΡΡΡΡΠ²ΠΊΠ° Π²ΡΠ΅Π³Π΄Π° ΠΈΠΌΠ΅Π΅Ρ ΠΊΠ»Π°Π΄ΠΎΠ²ΠΊΡ, ΠΊΠΎΡΠΎΡΠ°Ρ Π½Π°Ρ ΠΎΠ΄ΠΈΡΡΡ ΠΏΠΎ ΡΠΎΡΠ΅Π΄ΡΡΠ²Ρ Ρ ΠΊΠΎΠΌΠ½Π°ΡΠΎΠΉ. ΠΡΠΎΡ ΠΌΠΎΠΌΠ΅Π½Ρ Π½ΡΠΆΠ½ΠΎ ΡΡΠΈΡΡΠ²Π°ΡΡ ΠΏΡΠΈ Π²ΡΠ±ΠΎΡΠ΅ ΡΠΏΠ°Π»ΡΠ½ΠΈ, ΡΠ°ΠΊ ΠΊΠ°ΠΊ ΡΠΌΠ΅ΠΆΠ½ΡΠΉ ΡΡΠ»Π°Π½ ΠΎΡΠ»ΠΈΡΠ½ΠΎ ΠΏΠΎΠ΄ΠΎΠΉΠ΄ΡΡ Π΄Π»Ρ Π³Π°ΡΠ΄Π΅ΡΠΎΠ±Π½ΠΎΠΉ. ΠΠ΅ ΡΡΠΎΠΈΡ Π²ΠΎΠ»Π½ΠΎΠ²Π°ΡΡΡΡ, Π΅ΡΠ»ΠΈ Π½Π΅ ΠΎΡΡΠ°Π½Π΅ΡΡΡ ΠΌΠ΅ΡΡΠ° Π΄Π»Ρ Ρ ΡΠ°Π½Π΅Π½ΠΈΡ Π±Π΅Π»ΡΡ ΠΈ ΠΏΠΎΡΡΠ΅Π»ΡΠ½ΡΡ ΠΏΡΠΈΠ½Π°Π΄Π»Π΅ΠΆΠ½ΠΎΡΡΠ΅ΠΉ β Π΄Π»Ρ ΡΡΠΈΡ ΡΠ΅Π»Π΅ΠΉ ΠΎΡΠ»ΠΈΡΠ½ΠΎ ΠΏΠΎΠ΄ΠΎΠΉΠ΄ΡΡ ΠΏΡΠΎΡΡΠΎΠΉ ΠΊΠΎΠΌΠΎΠ΄.
ΠΠ»Π°Π½ΠΈΡΠΎΠ²ΠΊΠ° 3-Ρ
ΠΊΠΎΠΌΠ½Π°ΡΠ½ΠΎΠΉ ΠΊΠ²Π°ΡΡΠΈΡΡ Π² Ρ
ΡΡΡΡΠ²ΠΊΠ΅ΠΠ΅ΡΠ½ΡΡΡΡΡ ΠΊ ΠΎΠ³Π»Π°Π²Π»Π΅Π½ΠΈΡΠΠ±ΡΠΈΠ΅ ΡΠ΅ΠΊΠΎΠΌΠ΅Π½Π΄Π°ΡΠΈΠΈ
ΠΡΠ»ΠΈ Π±ΠΎΠ»ΡΡΠΎΠΉ Π²ΠΌΠ΅ΡΡΠΈΡΠ΅Π»ΡΠ½ΡΠΉ ΡΠΊΠ°Ρ ΡΠΎ ΡΡΠ΅ΠΊΠ»ΡΠ½Π½ΡΠΌ ΠΈΠ»ΠΈ Π·Π΅ΡΠΊΠ°Π»ΡΠ½ΡΠΌ ΠΎΡΠΎΡΠΌΠ»Π΅Π½ΠΈΠ΅ΠΌ ΠΏΠΎΡΡΠ°Π²ΠΈΡΡ Π² ΠΎΠ΄Π½ΠΎΠΊΠΎΠΌΠ½Π°ΡΠ½ΡΡ ΠΊΠ²Π°ΡΡΠΈΡΡ, ΡΠΎ ΠΌΠΎΠΆΠ½ΠΎ Π²ΠΈΠ·ΡΠ°Π»ΡΠ½ΠΎ Π½Π΅ΠΌΠ½ΠΎΠ³ΠΎ ΡΠ°ΡΡΠΈΡΠΈΡΡ ΠΏΡΠΎΡΡΡΠ°Π½ΡΡΠ²ΠΎ. ΠΡΠ±ΠΈΡΠ°ΡΡ ΡΠ»Π΅Π΄ΡΠ΅Ρ Π»ΡΠ³ΠΊΡΡ, Π½Π΅ΡΡΠΆΡΠ»ΡΡ ΠΌΠ΅Π±Π΅Π»Ρ. ΠΡΡΡΠΈΠΉ ΡΡΠΈΠ»Ρ Π΄Π»Ρ ΡΠ°ΠΊΠΎΠ³ΠΎ ΠΆΠΈΠ»ΡΡ β ΠΌΠΈΠ½ΠΈΠΌΠ°Π»ΠΈΠ·ΠΌ, ΠΊΠΎΡΠΎΡΡΠΉ, ΠΊΡΡΠ°ΡΠΈ, ΡΠΎΠΆΠ΅ ΠΈΠ· 1960-Ρ . ΠΠ·Π½Π°ΠΊΠΎΠΌΡΡΠ΅ΡΡ Ρ Π΄ΠΈΠ·Π°ΠΉΠ½ΠΎΠΌ ΡΠΊΠ°Π½Π΄ΠΈΠ½Π°Π²ΡΠΊΠΎΠΉ ΠΌΠ΅Π±Π΅Π»ΠΈ. ΠΡΠ° ΠΌΠ΅Π±Π΅Π»Ρ ΠΎΡΠ΅Π½Ρ Ρ ΠΎΡΠΎΡΠΎ Π²ΠΏΠΈΡΠ΅ΡΡΡ Π² ΠΈΠ½ΡΠ΅ΡΡΠ΅Ρ Π½Π΅Π±ΠΎΠ»ΡΡΠΈΡ ΠΊΠ²Π°ΡΡΠΈΡ.
ΠΠ΅ΠΌΠ°Π»ΠΎΠ²Π°ΠΆΠ½ΠΎΠ΅ Π·Π½Π°ΡΠ΅Π½ΠΈΠ΅ ΠΈΠΌΠ΅Π΅Ρ ΡΠ°ΠΊΠΆΠ΅ Π·ΠΎΠ½ΠΈΡΠΎΠ²Π°Π½ΠΈΠ΅ ΠΌΠ°Π»ΠΎΠ³Π°Π±Π°ΡΠΈΡΠ½ΡΡ ΡΠΏΠ°Π»Π΅Π½, Ρ ΠΎΡΡ Π±Ρ ΠΏΠΎ ΡΠ²Π΅ΡΡ ΠΈ ΡΠ°ΠΊΡΡΡΠ΅. Π Π²ΠΎΡΒ ΠΌΠ½ΠΎΠ³ΠΎΡΡΠΎΠ²Π½Π΅Π²ΡΠΉ Π³ΠΈΠΏΡΠΎΠΊΠ°ΡΡΠΎΠ½Π½ΡΠΉ ΠΏΠΎΡΠΎΠ»ΠΎΠΊ Π΄Π΅Π»Π°ΡΡ Π½Π΅ ΡΠ»Π΅Π΄ΡΠ΅Ρ, ΠΎΠ½ Β«ΡΠΊΡΠ°Π΄ΡΡΒ» ΠΈ Π±Π΅Π· ΡΠΎΠ³ΠΎ Π½Π΅ Ρ Π²Π°ΡΠ°ΡΡΡΡ Π²ΡΡΠΎΡΡ.
ΠΠ° Π²ΠΈΠ΄Π΅ΠΎ ΠΌΠΎΠΆΠ΅ΡΠ΅ ΠΏΠΎΡΠΌΠΎΡΡΠ΅ΡΡ, ΠΊΠ°ΠΊ Π±ΡΠ» ΡΠ΄Π΅Π»Π°Π½ Π΄ΠΈΠ·Π°ΠΉΠ½ ΠΈΠ½ΡΠ΅ΡΡΠ΅ΡΠ° Π² ΠΌΠ°Π»Π΅Π½ΡΠΊΠΎΠΉ Ρ ΡΡΡΡΠ²ΠΊΠ΅.
proekt-sam.ru
Π₯ΡΡΡΠ΅Π²ΠΊΠΈ: ΠΎΠΏΠΈΡΠ°Π½ΠΈΠ΅, ΡΠΈΠΏΠΎΠ²ΡΠ΅ ΠΏΠ»Π°Π½ΠΈΡΠΎΠ²ΠΊΠΈ Ρ ΡΠΎΡΠΎ
29 ΡΠ΅Π½ΡΡΠ±ΡΡ, 2014. ΠΡΠΎΡΠΈΡΠ°Π½ΠΎ 113943 ΡΠ°Π·(Π°)
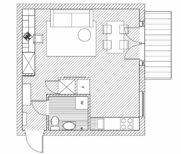
ΠΠ²Π΅Π΄Π΅Π½ΠΈΠ΅ Π‘Π΅Π³ΠΎΠ΄Π½Ρ ΡΡΡΠ΅ΡΡΠ²ΡΠ΅Ρ ΠΌΠ½ΠΎΠΆΠ΅ΡΡΠ²ΠΎ ΠΌΠ½ΠΎΠ³ΠΎΡΡΡΡΠ½ΡΡ Π΄ΠΎΠΌΠΎΠ² ΡΠ°Π·Π»ΠΈΡΠ½ΠΎΠΉ ΠΏΠ»Π°Π½ΠΈΡΠΎΠ²ΠΊΠΈ, Π³ΠΎΠ΄ΠΎΠ² ΠΏΠΎΡΡΡΠΎΠΉΠΊΠΈ ΠΈ ΡΠ°Π·ΠΌΠ΅ΡΠ° ΠΆΠΈΠ»ΠΎΠΉ ΠΏΠ»ΠΎΡΠ°Π΄ΠΈ. Π Π΄Π°Π½Π½ΠΎΠΉ ΡΡΠ°ΡΠ΅ΠΉ ΠΡ Π±ΠΎΠ»Π΅Π΅ ΠΏΠΎΠ΄ΡΠΎΠ±Π½ΠΎ ΡΠ°ΡΡΠΌΠΎΡΡΠΈΠΌ ΠΎΡΠ½ΠΎΠ²Π½ΡΠ΅ ΠΏΠ»Π°Π½ΠΈΡΠΎΠ²ΠΊΠΈ ΠΏΠΎΠΏΡΠ»ΡΡΠ½ΡΡ ΠΌΠ½ΠΎΠ³ΠΎΡΡΠ°ΠΆΠ½ΡΡ Β«Π₯ΡΡΡΠΎΠ²ΠΎΠΊΒ», ΠΊΠΎΡΠΎΡΡΠ΅ ΠΌΠΎΠΆΠ½ΠΎ Π²ΡΡΡΠ΅ΡΠΈΡΡ Π² ΠΊΠ°ΠΆΠ΄ΠΎΠΉ ΡΡΡΠ°Π½Π΅ Π±ΡΠ²ΡΠ΅Π³ΠΎ Π‘Π‘Π‘Π . ΠΠ°ΠΊ ΠΏΡΠ°Π²ΠΈΠ»ΠΎ, ΡΡΠΎ 4-Ρ ΠΈΠ»ΠΈ 5-ΡΠΈ ΡΡΠ°ΠΆΠ½ΡΠ΅ ΠΌΠ½ΠΎΠ³ΠΎΠΊΠ²Π°ΡΡΠΈΡΠ½ΡΠ΅ Π΄ΠΎΠΌΠ°, ΠΊΠΎΡΠΎΡΡΠ΅ Π²ΠΎΠ·Π²ΠΎΠ΄ΠΈΠ»ΠΈΡΡ Π²ΠΎ Π²ΡΠ΅ΠΌΠ΅Π½Π° ΡΡΠΊΠΎΠ²ΠΎΠ΄ΡΡΠ²Π° Π₯ΡΡΡΠ΅Π²Π° ΠΠΈΠΊΠΈΡΡ Π‘Π΅ΡΠ³Π΅Π΅Π²ΠΈΡΠ°.
Β«Π₯ΡΡΡΠ΅Π²ΠΊΠΈΒ» Π²ΠΎΠ·Π²ΠΎΠ΄ΠΈΠ»ΠΈΡΡ Π² ΠΏΠ΅ΡΠΈΠΎΠ΄ Ρ 1958 Π΄ΠΎ 1985 Π³ΠΎΠ΄Π°, ΠΏΡΠΈ ΡΡΠΎΠΌ ΡΡΡΠΎΠΉΠΊΠ° Π±ΡΠ»Π° ΡΠΎΠ²ΡΠ΅ΠΌΠ΅Π½Π½ΠΎΠ³ΠΎ Π½Π° ΡΠΎ Π²ΡΠ΅ΠΌΡ ΡΠΈΠΏΠ°, ΠΈ ΡΡΡΡΡΠΈ ΡΠ΅ΠΌΠ΅ΠΉ ΡΠΌΠΎΠ³Π»ΠΈ ΠΏΠΎΠ»ΡΡΠΈΡΡ ΠΊΠΎΠΌΡΠΎΡΡΠ°Π±Π΅Π»ΡΠ½ΡΠ΅ ΠΊΠ²Π°ΡΡΠΈΡΡ Ρ ΠΏΡΠΎΡ ΠΎΠ΄Π½ΡΠΌΠΈ ΠΊΠΎΠΌΠ½Π°ΡΠ°ΠΌΠΈ. Π‘ 1958 Π³ΠΎΠ΄Π° Π΄Π΅ΠΉΡΡΠ²ΡΠ΅Ρ ΡΠΎΠ±ΡΡΠ²Π΅Π½Π½ΡΠΉ Π‘ΠΠΈΠ.
ΠΠ±ΡΠΈΠ΅ ΡΠ²Π΅Π΄Π΅Π½ΡΡ ΠΎ Ρ ΡΡΡΠ΅Π²ΠΊΠ°Ρ
ΠΠ΅ΡΠ²ΠΎΠ΅ ΠΏΠΎΠΊΠΎΠ»Π΅Π½ΠΈΠ΅ 4-Ρ ΠΈΠ»ΠΈ 5-ΡΠΈ ΡΡΠ°ΠΆΠ½ΡΡ Β«Ρ ΡΡΡΠ΅Π²ΠΎΠΊΒ» ΠΎΡΠ»ΠΈΡΠ°Π»ΠΎΡΡ Π½Π΅Π±ΠΎΠ»ΡΡΠΎΠΉ ΠΆΠΈΠ»ΠΎΠΉ ΠΏΠ»ΠΎΡΠ°Π΄ΡΡ, ΠΏΡΠΎΡ ΠΎΠ΄Π½ΡΠΌΠΈ ΠΊΠΎΠΌΠ½Π°ΡΠ°ΠΌΠΈ. Π ΡΠ°ΠΊΠΈΡ Π°ΠΏΠ°ΡΡΠ°ΠΌΠ΅Π½ΡΠ°Ρ Π²ΡΡΠΎΡΠ° ΠΏΠΎΡΠΎΠ»ΠΊΠΎΠ² Π΄ΠΎΡΡΠΈΠ³Π°Π»Π° Π²ΡΠ΅Π³ΠΎ 2,48 ΠΌΠ΅ΡΡΠ°, Π² Π΄ΠΎΠΌΠ°Ρ Π±Π»ΠΎΡΠ½ΠΎΠ³ΠΎ ΡΠΈΠΏΠ° Π²ΡΡΠΎΡΠ° ΠΏΠΎΡΠΎΠ»ΠΊΠ° ΠΌΠΎΠ³Π»Π° Π΄ΠΎΡΡΠΈΠ³Π°ΡΡ 2,7 ΠΌΠ΅ΡΡΠ°. Π Β«Ρ ΡΡΡΠ΅Π²ΠΊΠ°Ρ Β» Π±ΡΠ»Π° Π΄ΠΎΡΡΠ°ΡΠΎΡΠ½ΠΎ ΡΠ»Π°Π±Π°Ρ Π·Π²ΡΠΊΠΎΠΈΠ·ΠΎΠ»ΡΡΠΈΡ ΠΏΠΎΠΌΠ΅ΡΠ΅Π½ΠΈΠΉ, ΡΠΎΠ²ΠΌΠ΅ΡΠ΅Π½Π½ΡΠΉ ΡΠ°Π½ΡΠ·Π΅Π» ΠΈ ΠΎΡΡΡΡΡΡΠ²ΠΎΠ²Π°Π»ΠΈ Π»ΠΈΡΡΡ.
Π‘ΡΠΎΠΈΡ ΠΎΡΠΌΠ΅ΡΠΈΡΡ, ΡΡΠΎ Π½Π΅ΠΊΠΎΡΠΎΡΡΠ΅ Β«Ρ ΡΡΡΠ΅Π²ΠΊΠΈΒ» ΠΎΡΠ½ΠΎΡΠΈΠ»ΠΈΡΡ ΠΊ Π²ΡΠ΅ΠΌΠ΅Π½Π½ΠΎΠΌΡ ΠΆΠΈΠ»ΡΡ, ΠΊΠΎΡΠΎΡΡΠ΅ ΡΠ°ΡΡΡΠΈΡΡΠ²Π°Π»ΠΈ Π½Π° ΡΠΊΡΠΏΠ»ΡΠ°ΡΠ°ΡΠΈΡ Π΄ΠΎ 25 Π»Π΅Ρ. ΠΠ΄Π½Π°ΠΊΠΎ Π±ΠΎΠ»ΡΡΠ°Ρ ΡΠ°ΡΡΡ, Π²ΡΠ΅ Π΅ΡΠ΅ ΠΈΡΠΏΠΎΠ»ΡΠ·ΡΠ΅ΡΡΡ Π³ΡΠ°ΠΆΠ΄Π°Π½Π°ΠΌΠΈ Π±ΡΠ²ΡΠΈΡ ΡΡΡΠ°Π½ Π‘Π‘Π‘Π . Π Β«Ρ ΡΡΡΠ΅Π²ΠΊΠ°ΠΌΒ» Π½Π΅ ΡΠ½ΠΎΡΠΈΠΌΠΎΠΉ ΡΠ΅ΡΠΈΠΈ ΠΏΡΠΈΠΌΠ΅Π½ΡΠ»ΠΈΡΡ Π΄ΡΡΠ³ΠΈΠ΅ ΡΠΊΡΠΏΠ»ΡΠ°ΡΠ°ΡΠΈΠΎΠ½Π½ΡΠ΅ Π½ΠΎΡΠΌΡ Π΄ΠΎ 50 Π»Π΅Ρ. Π ΠΏΠΎΡΠ»Π΅Π΄ΡΡΠ²ΠΈΠ΅ ΡΠΊΡΠΏΠ΅ΡΡΡ Π·Π°ΡΠ²ΠΈΠ»ΠΈ, ΡΡΠΎ ΡΠΊΡΠΏΠ»ΡΠ°ΡΠ°ΡΠΈΠΎΠ½Π½ΡΠΉ ΠΏΠ΅ΡΠΈΠΎΠ΄ ΠΌΠΎΠΆΠ½ΠΎ ΠΏΡΠΎΠ΄Π»ΠΈΡΡ Π΄ΠΎ 150 Π»Π΅Ρ (Π² ΡΠ»ΡΡΠ°Π΅ ΠΊΠ°ΠΏΠΈΡΠ°Π»ΡΠ½ΡΡ ΡΠ΅ΠΌΠΎΠ½ΡΠΎΠ² ΡΠΎΠ³Π»Π°ΡΠ½ΠΎ Π½ΠΎΡΠΌΠ°ΠΌ). ΠΠ° ΡΠ΅Π³ΠΎΠ΄Π½ΡΡΠ½ΠΈΠΉ Π΄Π΅Π½Ρ Β«Ρ ΡΡΡΠ΅Π²ΠΊΠΈΒ» Π² ΠΠΎΡΠΊΠ²Π΅ ΠΈ ΠΠΈΡΠ΅ΡΠ΅ ΠΏΠΎΠ΄Π»Π΅ΠΆΠ°Ρ ΡΠ½ΠΎΡΡ. ΠΠ΄Π½Π°ΠΊΠΎ Π² ΠΠΈΠ½ΡΠΊΠ΅, Β«Ρ ΡΡΡΠ΅Π²ΠΊΠ°ΠΌΒ» Π²ΡΠΏΠΎΠ»Π½ΠΈΠ»ΠΈ ΠΊΠ°ΠΏ. ΡΠ΅ΠΌΠΎΠ½Ρ ΠΈ ΡΡΠ΅ΠΏΠ»ΠΈΠ»ΠΈ Π½Π°ΡΡΠΆΠ½ΡΠ΅ ΡΡΠ΅Π½Ρ.
ΠΡΠ½ΠΎΠ²Π½ΡΠ΅ Ρ Π°ΡΠ°ΠΊΡΠ΅ΡΠΈΡΡΠΈΠΊΠΈ Β«Ρ ΡΡΡΠ΅Π²ΠΎΠΊΒ»:
- 3-ΠΊΠΎΠΌΠ½Π°ΡΠ½ΡΠ΅ Ρ ΠΎΠ±ΡΠ΅ΠΉ ΠΏΠ»ΠΎΡΠ°Π΄ΡΡ 55-58 ΠΌΒ²;
- 2-ΠΊΠΎΠΌΠ½Π°ΡΠ½ΡΠ΅ Ρ ΠΎΠ±ΡΠ΅ΠΉ ΠΏΠ»ΠΎΡΠ°Π΄ΡΡ 30-46 ΠΌΒ²;
- 1-ΠΊΠΎΠΌΠ½Π°ΡΠ½ΡΠ΅ Ρ ΠΎΠ±ΡΠ΅ΠΉ ΠΏΠ»ΠΎΡΠ°Π΄ΡΡ 31-33 ΠΌΒ².
ΠΠΈΠ»Π°Ρ ΠΏΠ»ΠΎΡΠ°Π΄Ρ ΠΊΠΎΠΌΠ½Π°Ρ:
- ΠΠΎΡΡΠΈΠ½ΡΠ΅ ΠΊΠΎΠΌΠ½Π°ΡΡ β ΠΎΡ 14 ΠΌΒ²;
- Π‘ΠΏΠ°Π»ΡΠ½ΡΠ΅ ΠΊΠΎΠΌΠ½Π°ΡΡ β ΠΎΡ 8 ΠΌΒ²;
- ΠΠ΅ΡΡΠΊΠΈΠ΅ ΠΊΠΎΠΌΠ½Π°ΡΡ β ΠΎΡ 6 ΠΌΒ²;
- ΠΡΡ Π½ΠΈ β ΠΎΡ 4,5 ΠΌΒ².
ΠΠΈΠ΄Ρ ΡΠΈΠΏΠΎΠ²ΡΡ ΠΏΠ»Π°Π½ΠΈΡΠΎΠ²ΠΎΠΊ, ΡΠ΅ΡΠΈΠΈ, ΡΠΎΡΠΎ, ΠΎΠΏΠΈΡΠ°Π½ΠΈΡ ΠΈ Π³ΠΎΠ΄Ρ ΠΏΠΎΡΡΡΠΎΠΉΠΊΠΈ Ρ ΡΡΡΠ΅Π²ΠΎΠΊ
Π‘ΠΠ ΠΠ― 1-464 β (Π³ΠΎΠ΄ ΠΏΠΎΡΡΡΠΎΠΉΠΊΠΈ 1960-1967)

Π₯ΡΡΡΠ΅Π²ΠΊΠΈ β ΡΠ΅ΡΠΈΡ 1-464
ΠΡΡΠΈ ΡΡΡΡΠ½ΡΠ΅ Π΄ΠΎΠΌΠ° ΠΏΠ°Π½Π΅Π»ΡΠ½ΠΎΠ³ΠΎ ΡΠΈΠΏΠ° Ρ ΡΠ΅ΡΡΡΡΠΌΡ ΠΊΠ²Π°ΡΡΠΈΡΠ°ΠΌΠΈ Π½Π° ΠΎΠ΄Π½ΠΎΠΉ ΠΏΠ»ΠΎΡΠ°Π΄ΠΊΠ΅.
ΠΡΠΎΠ±Π΅Π½Π½ΠΎΡΡΠΈ:
ΠΡΡΠΎΡΠ° ΠΏΠΎΠΌΠ΅ΡΠ΅Π½ΠΈΠΉ β 2,5 ΠΌ;
Π‘Π°Π½ΡΠ·Π΅Π» ΡΠΎΠ²ΠΌΠ΅ΡΠ΅Π½Π½ΡΠΉ;
ΠΡΡ Π½Ρ β 5,8 ΠΌΒ²;
ΠΡΠΎΠ±Π΅Π½Π½ΠΎΡΡΠΈ: ΠΊΠ»Π°Π΄ΠΎΠ²ΠΊΠ°, ΡΠΊΠ°ΡΡ Π²ΡΡΡΠΎΠ΅Π½Π½ΠΎΠ³ΠΎ ΡΠΈΠΏΠ°, Π±Π°Π»ΠΊΠΎΠ½.
ΠΠ»ΠΎΡΠ°Π΄Ρ Π³ΠΎΡΡΠΈΠ½ΠΎΠΉ Π² 1-Π½ΠΎ ΠΊΠΎΠΌΠ½Π°ΡΠ½ΡΡ Β«Ρ ΡΡΡΠ΅Π²ΠΊΠ°Ρ Β» ΡΡΠΎΠ³ΠΎ ΡΠΈΠΏΠ° ΡΠΎΡΡΠ°Π²Π»ΡΠ΅Ρ 19 ΠΌΒ², Π² 2-Ρ ΠΈ 3-Ρ ΠΊΠΎΠΌΠ½Π°ΡΠ½ΡΡ 17,3 ΠΌΒ²; 19 ΠΌΒ² ΠΈ 20,4 ΠΌΒ² Π² Π·Π°Π²ΠΈΡΠΈΠΌΠΎΡΡΠΈ ΠΎΡ ΠΏΠ»Π°Π½ΠΈΡΠΎΠ²ΠΊΠΈ. ΠΠ»Π°Π΄ΠΎΠ²Π°Ρ ΡΠ°Π·ΠΌΠ΅ΡΠ°Π΅ΡΡΡ Π² ΠΊΠΎΠ½ΡΠ΅ ΡΠΏΠ°Π»ΡΠ½ΠΈ ΠΈΠ»ΠΈ ΠΌΠ΅ΠΆΠ΄Ρ 1 ΠΈ 2 ΡΠΏΠ°Π»ΡΠ½Π΅ΠΉ. ΠΡΡ ΠΎΠ΄ Π½Π° Π±Π°Π»ΠΊΠΎΠ½ ΠΈΠ· Π³ΠΎΡΡΠΈΠ½ΠΎΠΉ. Π‘Π°Π½ΡΠ·Π΅Π» ΡΠΎΠ²ΠΌΠ΅ΡΠ΅Π½Π½ΡΠΉ ΡΡΠ΄ΠΎΠΌ Ρ ΠΊΡΡ Π½Π΅ΠΉ.
Π‘ΠΠ ΠΠ― 1-335 β (Π³ΠΎΠ΄ ΠΏΠΎΡΡΡΠΎΠΉΠΊΠΈ 1963-1967)

ΠΠ°Π½Π΅Π»ΡΠ½ΡΠ΅ ΠΏΡΡΠΈ ΡΡΡΡΠ½ΡΠ΅ Π΄ΠΎΠΌΠ° Ρ ΡΠ΅ΡΡΡΡΠΌΡ ΠΊΠ²Π°ΡΡΠΈΡΠ°ΠΌΠΈ Π½Π° ΠΎΠ΄Π½ΠΎΠΉ ΠΏΠ»ΠΎΡΠ°Π΄ΠΊΠ΅.
ΠΡΠΎΠ±Π΅Π½Π½ΠΎΡΡΠΈ:
ΠΡΡΠΎΡΠ° ΠΏΠΎΠΌΠ΅ΡΠ΅Π½ΠΈΠΉ β 2,5 ΠΌ;
Π‘Π°Π½ΡΠ·Π΅Π» ΡΠΎΠ²ΠΌΠ΅ΡΠ΅Π½Π½ΡΠΉ;
ΠΡΡ Π½Ρ β 6,2 ΠΌΒ²;
ΠΡΠΎΠ±Π΅Π½Π½ΠΎΡΡΠΈ: ΠΊΠ»Π°Π΄ΠΎΠ²ΠΊΠ°, ΡΠΊΠ°ΡΡ Π²ΡΡΡΠΎΠ΅Π½Π½ΠΎΠ³ΠΎ ΡΠΈΠΏΠ°, Π±Π°Π»ΠΊΠΎΠ½.
ΠΠ»ΠΎΡΠ°Π΄Ρ Π³ΠΎΡΡΠΈΠ½ΠΎΠΉ Π² 1-Π½ΠΎ ΠΊΠΎΠΌΠ½Π°ΡΠ½ΡΡ Β«Ρ ΡΡΡΠ΅Π²ΠΊΠ°Ρ Β» ΡΡΠΎΠ³ΠΎ ΡΠΈΠΏΠ° ΡΠΎΡΡΠ°Π²Π»ΡΠ΅Ρ 18 ΠΌΒ², Π² 2-Ρ ΠΈ 3-Ρ ΠΊΠΎΠΌΠ½Π°ΡΠ½ΡΡ 17,1 ΠΌΒ²; 18,2 ΠΌΒ² ΠΈ 19,1 ΠΌΒ² Π² Π·Π°Π²ΠΈΡΠΈΠΌΠΎΡΡΠΈ ΠΎΡ ΠΏΠ»Π°Π½ΠΈΡΠΎΠ²ΠΊΠΈ. ΠΠ»Π°Π΄ΠΎΠ²Π°Ρ ΡΠ°Π·ΠΌΠ΅ΡΠ°Π΅ΡΡΡ Π² ΠΊΠΎΠ½ΡΠ΅ Π³ΠΎΡΡΠΈΠ½ΠΎΠΉ ΠΈΠ»ΠΈ ΠΌΠ΅ΠΆΠ΄Ρ 1 ΠΈ 2 ΡΠΏΠ°Π»ΡΠ½Π΅ΠΉ. ΠΡΡ ΠΎΠ΄ Π½Π° Π±Π°Π»ΠΊΠΎΠ½ ΠΈΠ· Π³ΠΎΡΡΠΈΠ½ΠΎΠΉ. Π‘Π°Π½ΡΠ·Π΅Π» ΡΠΎΠ²ΠΌΠ΅ΡΠ΅Π½Π½ΡΠΉ ΡΡΠ΄ΠΎΠΌ Ρ ΠΊΡΡ Π½Π΅ΠΉ.
Π‘ΠΠ ΠΠ― 1-434 β (Π³ΠΎΠ΄ ΠΏΠΎΡΡΡ
o-builder.ru
Π’ΠΈΠΏΠΎΠ²ΡΠ΅ ΡΠ΅ΡΠΈΠΈ Ρ ΡΡΡΠ΅Π²ΠΎΠΊ — ΡΠΎΡΠΎ ΠΏΠ»Π°Π½ΠΈΡΠΎΠ²ΠΎΠΊ.
Π‘ 1957 Π³ΠΎΠ΄Π°, ΠΏΠΎΡΠ»Π΅ ΠΏΡΠΈΠ½ΡΡΠΈΡ Π·Π°ΠΊΠΎΠ½Π°, ΠΊΠΎΡΠΎΡΡΠΉ ΠΏΡΠ΅Π΄ΡΡΠΌΠ°ΡΡΠΈΠ²Π°Π» ΡΡΡΡΠ°Π½Π΅Π½ΠΈΠ΅ ΠΈΠ·Π»ΠΈΡΠ΅ΡΡΠ² Π² ΠΏΡΠΎΠ΅ΠΊΡΠΈΡΠΎΠ²Π°Π½ΠΈΠΈ Π΄ΠΎΠΌΠΎΠ², Π² Π‘Π‘Π‘Π ΡΡΠ°Π»ΠΈ Π²ΠΎΠ·Π²ΠΎΠ΄ΠΈΡΡΡΡ Π·Π΄Π°Π½ΠΈΡ Π½ΠΎΠ²ΠΎΠ³ΠΎ ΡΠΈΠΏΠ°. Π Π½Π°ΡΠΎΠ΄Π΅ ΡΠ°ΠΊΠΈΠ΅ Π΄ΠΎΠΌΠ° ΠΏΠΎΠ»ΡΡΠΈΠ»ΠΈ Π½Π°Π·Π²Π°Π½ΠΈΠ΅ Β«Ρ ΡΡΡΠ΅Π²ΠΊΠΈΒ» (ΠΏΡΠΎΠΈΠ·Π²ΠΎΠ΄Π½ΠΎΠ΅ ΠΎΡ ΡΠ°ΠΌΠΈΠ»ΠΈΠΈ Π³Π΅Π½Π΅ΡΠ°Π»ΡΠ½ΠΎΠ³ΠΎ ΡΠ΅ΠΊΡΠ΅ΡΠ°ΡΡ Π¦Π ΠΠΠ‘Π‘ Π.Π‘. Π₯ΡΡΡΠ΅Π²Π°). Π’Π°ΠΊΠΈΠ΅ Π΄ΠΎΠΌΠ° ΠΏΠΎΠ»ΡΡΠΈΠ»ΠΈ Π²ΡΠΎΡΠΎΠ΅ Π½Π°Π·Π²Π°Π½ΠΈΠ΅ β Ρ ΡΡΡΠ΅Π±Ρ, Π² ΠΎΡΠ½ΠΎΠ²Π½ΠΎΠΌ, ΠΈΠ·-Π·Π° Π½Π΅ΡΠ΄ΠΎΠ±Π½ΠΎΠΉ ΠΈ Π½Π΅ΠΏΡΠΎΠΏΠΎΡΡΠΈΠΎΠ½Π°Π»ΡΠ½ΠΎΠΉ ΠΏΠ»Π°Π½ΠΈΡΠΎΠ²ΠΊΠΈ ΠΊΠΎΠΌΠ½Π°Ρ, ΡΠ·ΠΊΠΈΡ ΠΊΠΎΡΠΈΠ΄ΠΎΡΠΎΠ² ΠΈ ΠΏΡΠΎΠ»Π΅ΡΠΎΠ² ΠΏΠ»ΠΎΡΠ°Π΄ΠΎΠΊ, ΡΠΎΠ½ΠΊΠΈΡ ΡΡΠ΅Π½ ΠΈ ΠΊΠ°ΠΊ ΡΠ΅Π·ΡΠ»ΡΡΠ°Ρ β ΡΠΆΠ°ΡΠ½ΠΎΠΉ ΡΡΠΌΠΎΠΈΠ·ΠΎΠ»ΡΡΠΈΠΈ. Π ΡΡΠΎΠΉ ΡΡΠ°ΡΡΠ΅ ΠΌΡ ΡΠ°ΡΡΠΊΠ°ΠΆΠ΅ΠΌ ΠΎ ΡΠΎΠΌ, ΡΡΠΎ ΡΠ°ΠΊΠΎΠ΅ ΡΠΈΠΏΠΎΠ²ΡΠ΅ ΡΠ΅ΡΠΈΠΈ Ρ ΡΡΡΠ΅Π²ΠΎΠΊ, ΠΏΠΎΡΡΠ°ΡΠ°Π΅ΠΌΡΡ Π²ΡΠ΄Π΅Π»ΠΈΡΡ ΠΎΡΠ½ΠΎΠ²Π½ΡΠ΅ ΠΏΠ»ΡΡΡ ΠΈ ΠΌΠΈΠ½ΡΡΡ ΡΡΠΈΡ Π·Π΄Π°Π½ΠΈΠΉ. ΠΡΠΎΠ±Π΅Π½Π½ΠΎΡΡΠΈ ΠΏΠ»Π°Π½ΠΈΡΠΎΠ²ΠΊΠΈ ΠΏΡΠ΅Π΄ΠΎΡΡΠ°Π²ΠΈΠΌ Π² Π²ΠΈΠ΄Π΅ ΠΎΠΏΠΈΡΠ°Π½ΠΈΠΉ ΠΈ ΡΠΎΡΠΎ.
Π’ΠΈΠΏΠΎΠ²ΡΠ΅ ΡΠ΅ΡΠΈΠΈ Ρ ΡΡΡΠ΅Π²ΠΎΠΊ: ΠΎΡΠ½ΠΎΠ²Π½ΡΠ΅ ΠΏΠ»ΡΡΡ ΠΈ ΠΌΠΈΠ½ΡΡΡ Π΄ΠΎΠΌΠΎΠ²
ΠΠ°Π²Π°ΠΉΡΠ΅ ΡΠ°ΡΡΠΌΠΎΡΡΠΈΠΌ ΠΎΡΠ½ΠΎΠ²Π½ΡΠ΅ Ρ Π°ΡΠ°ΠΊΡΠ΅ΡΠΈΡΡΠΈΠΊΠΈ ΠΊΠ²Π°ΡΡΠΈΡ ΠΈ ΠΎΠΏΡΠ΅Π΄Π΅Π»ΠΈΠΌ ΠΎΡΠΎΠ±Π΅Π½Π½ΠΎΡΡΠΈ ΠΊΠ°ΠΆΠ΄ΠΎΠΉ ΡΠ΅ΡΠΈΠΈ Ρ ΡΡΡΠ΅Π²ΠΎΠΊ, ΠΊΠΎΡΠΎΡΡΠ΅ Π²ΠΎΠ·Π²ΠΎΠ΄ΠΈΠ»ΠΈΡΡ Π½Π° ΠΏΡΠΎΡΡΠΆΠ΅Π½ΠΈΠΈ 27 Π»Π΅Ρ. Π‘ΡΠΎΠΈΡ Π·Π°ΠΌΠ΅ΡΠΈΡΡ, ΡΡΠΎ ΠΈΠ·Π½Π°ΡΠ°Π»ΡΠ½ΠΎ Ρ ΡΡΡΠ΅Π²ΠΊΠΈ ΠΏΡΠ΅Π΄ΠΏΠΎΠ»Π°Π³Π°Π»ΠΎΡΡ ΠΈΡΠΏΠΎΠ»ΡΠ·ΠΎΠ²Π°ΡΡ, ΠΊΠ°ΠΊ Π²ΡΠ΅ΠΌΠ΅Π½Π½ΠΎΠ΅ ΠΆΠΈΠ»ΡΠ΅ ΠΈ ΡΠΊΡΠΏΠ»ΡΠ°ΡΠ°ΡΠΈΠΎΠ½Π½ΡΠΉ ΡΡΠΎΠΊ Π·Π΄Π°Π½ΠΈΡ ΡΠΎΡΡΠ°Π²Π»ΡΠ» ΠΎΡ 25 Π΄ΠΎ 50 Π»Π΅Ρ. ΠΠΎ, ΠΊΠ°ΠΊ ΠΈΠ·Π²Π΅ΡΡΠ½ΠΎ, Π² ΡΠ°ΠΊΠΈΡ Π΄ΠΎΠΌΠ°Ρ ΠΏΡΠΎΠΆΠΈΠ²Π°ΡΡ Π»ΡΠ΄ΠΈ ΠΈ Π² Π½Π°ΡΠ΅ Π²ΡΠ΅ΠΌΡ. Π ΠΌΠΈΠ½ΡΡΠ°ΠΌ Ρ ΡΡΡΠ΅Π²ΠΎΠΊ ΠΌΠΎΠΆΠ½ΠΎ ΠΎΡΠ½Π΅ΡΡΠΈ ΠΏΠ»ΠΎΡ ΡΡ ΡΡΠΌΠΎΠΈΠ·ΠΎΠ»ΡΡΠΈΡ ΠΈ ΡΠ΅ΠΏΠ»ΠΎΠΈΠ·ΠΎΠ»ΡΡΠΈΡ (Π·ΠΈΠΌΠΎΠΉ ΠΏΡΠΎΡ Π»Π°Π΄Π½ΠΎ, Π° Π»Π΅ΡΠΎΠΌ ΡΠ»ΠΈΡΠΊΠΎΠΌ ΠΆΠ°ΡΠΊΠΎ Π² ΠΊΠ²Π°ΡΡΠΈΡΠ΅), Π½Π΅ Π²ΡΠ΅Π³Π΄Π° ΡΠ΄Π°ΡΠ½ΡΡ ΠΏΠ»Π°Π½ΠΈΡΠΎΠ²ΠΊΡ ΠΊΠ²Π°ΡΡΠΈΡΡ ΠΈ ΠΏΠΎΠ΄ΡΠ΅Π·Π΄Π°: ΡΠ·ΠΊΠΈΠ΅ ΠΊΠΎΡΠΈΠ΄ΠΎΡΡ, ΠΌΠ°Π»Π΅Π½ΡΠΊΡΡ ΠΊΡΡ Π½Ρ, ΠΎΡΡΡΡΡΡΠ²ΠΈΠ΅ ΠΌΡΡΠΎΡΠΎΠΏΡΠΎΠ²ΠΎΠ΄Π° ΠΈ ΠΎΡΠ΅Π½Ρ ΡΠ°ΡΡΠΎ Π»ΠΈΡΡΠ°. Π ΠΎΡΠ½ΠΎΠ²Π½ΡΠΌ ΠΏΠ»ΡΡΠ°ΠΌ ΡΠ°ΠΊΠΈΡ Π΄ΠΎΠΌΠΎΠ² ΠΌΠΎΠΆΠ½ΠΎ ΠΎΡΠ½Π΅ΡΡΠΈ Π½Π΅Π²ΡΡΠΎΠΊΡΡ ΡΡΠΎΠΈΠΌΠΎΡΡΡ.
Π ΠΎΡΠ½ΠΎΠ²Π½ΡΠΌ ΠΏΠ»ΡΡΠ°ΠΌ ΡΠ°ΠΊΠΈΡ Π΄ΠΎΠΌΠΎΠ² ΠΌΠΎΠΆΠ½ΠΎ ΠΎΡΠ½Π΅ΡΡΠΈ Π½Π΅Π²ΡΡΠΎΠΊΡΡ ΡΡΠΎΠΈΠΌΠΎΡΡΡ ΠΆΠΈΠ»ΡΡ ΠΈ ΡΠ°Π·Π²ΠΈΡΡΡ ΠΈΠ½ΡΡΠ°ΡΡΡΡΠΊΡΡΡΡ Π²ΠΎΠΊΡΡΠ³ Π·Π΄Π°Π½ΠΈΡ. ΠΠ°ΠΊ ΠΏΡΠ°Π²ΠΈΠ»ΠΎ, Π½Π΅Π΄Π°Π»Π΅ΠΊΠΎ ΠΎΡ Ρ ΡΡΡΠ΅Π²ΠΎΠΊ Π΅ΡΡΡ ΡΠ°Π΄ΠΈΠΊΠΈ, ΡΠΊΠΎΠ»Ρ, ΠΌΠ°Π³Π°Π·ΠΈΠ½Ρ ΠΈ ΠΎΡΠ»ΠΈΡΠ½Π°Ρ ΡΡΠ°Π½ΡΠΏΠΎΡΡΠ½Π°Ρ ΡΠ°Π·Π²ΡΠ·ΠΊΠ°. ΠΡΠ»ΠΈ Π΄Π΅Π½Π΅ΠΆΠ½ΡΡ ΡΡΠ΅Π΄ΡΡΠ² Π½Π° ΠΏΠΎΠΊΡΠΏΠΊΡ ΠΊΠ²Π°ΡΡΠΈΡΡ ΠΌΠ°Π»ΠΎ, ΡΠΎ Ρ ΡΡΡΠ΅Π²ΠΊΠ° β Π½Π΅ ΡΠ°ΠΌΡΠΉ ΠΏΠ»ΠΎΡ ΠΎΠΉ Π²Π°ΡΠΈΠ°Π½Ρ. Π’Π΅ΠΌ Π±ΠΎΠ»Π΅Π΅, ΡΠ°ΠΊΠΈΠ΅ Π·Π΄Π°Π½ΠΈΡ Π² ΠΠΎΡΠΊΠ²Π΅ ΠΈ Π΄ΡΡΠ³ΠΈΡ Π³ΠΎΡΠΎΠ΄Π°Ρ Π ΠΎΡΡΠΈΠΈ, ΠΏΠΎΠ΄Π»Π΅ΠΆΠ°Ρ ΡΠ½ΠΎΡΡ, Π² ΡΡΠΎΠΌ ΡΠ»ΡΡΠ°Π΅ Π²Π»Π°Π΄Π΅Π»ΡΡΡ ΠΏΠΎΠ»ΡΡΠ°ΡΡ Π½ΠΎΠ²Π΅Π½ΡΠΊΠΎΠ΅ ΠΆΠΈΠ»ΡΠ΅, ΠΈΠ»ΠΈ ΡΠ΅ΠΊΠΎΠ½ΡΡΡΡΠΊΡΠΈΠΈ ΠΈ ΠΏΠ΅ΡΠ΅ΠΏΠ»Π°Π½ΠΈΡΠΎΠ²ΠΊΠ΅.
Π‘Π΅ΡΠΈΡ 1-464 (1960 β 1967 Π³Π³.)
ΠΠ±ΡΠΈΠΉ ΡΠ΅ΡΡΠ΅ΠΆ:
ΠΠ΄Π½ΠΎΠΉ ΠΈΠ· ΡΠ°ΠΌΡΡ ΠΏΠΎΠΏΡΠ»ΡΡΠ½ΡΡ Π² Π‘Π‘Π‘Π ΡΠ΅ΡΠΈΠΉ Ρ ΡΡΡΠ΅Π²ΠΎΠΊ ΡΡΠ°Π»Π° 1-464 (1960 β 1967 Π³Π³.). ΠΡΠΎ ΠΏΠ°Π½Π΅Π»ΡΠ½ΡΠΉ Π΄ΠΎΠΌ Ρ 5 ΡΡΠ°ΠΆΠ°ΠΌΠΈ, ΡΠ΅Π΄ΠΊΠΎ ΠΌΠΎΠΆΠ½ΠΎ Π²ΡΡΡΠ΅ΡΠΈΡΡ 3 ΠΈ 4 ΡΡΠ°ΠΆΠ½ΡΠ΅ Π·Π΄Π°Π½ΠΈΡ. ΠΠΎ Π²ΡΠ΅Ρ ΠΊΠ²Π°ΡΡΠΈΡΠ°Ρ Π΅ΡΡΡ Π±Π°Π»ΠΊΠΎΠ½Ρ (ΡΠ°ΠΊΠΆΠ΅ Π΄ΠΎΠΏΠΎΠ»Π½ΠΈΡΠ΅Π»ΡΠ½ΡΠ΅ ΠΊΠ»Π°Π΄ΠΎΠ²ΠΊΠΈ), Π° Π²ΠΎΡ Π»ΠΈΡΡΡ Π½Π΅ ΠΏΡΠ΅Π΄ΡΡΠΌΠΎΡΡΠ΅Π½Ρ ΠΈ ΠΆΠΈΡΠ΅Π»ΡΠΌ Π·Π΄Π°Π½ΠΈΡ ΠΏΡΠΈΡ ΠΎΠ΄ΠΈΡΡΡΡ ΠΏΠΎΠ΄Π½ΠΈΠΌΠ°ΡΡΡΡ ΠΈ ΡΠΏΡΡΠΊΠ°ΡΡΡΡ ΠΏΠΎ ΡΡΡΠΏΠ΅Π½ΡΠΊΠ°ΠΌ, ΡΡΠΎ Π΄ΠΎΡΡΠ°ΡΠΎΡΠ½ΠΎ ΡΡΠΆΠ΅Π»ΠΎ ΠΏΠΎΠΆΠΈΠ»ΡΠΌ Π»ΡΠ΄ΡΠΌ, ΡΠ΅ΠΌΡΡΠΌ Ρ ΠΌΠ°Π»Π΅Π½ΡΠΊΠΈΠΌΠΈ Π΄Π΅ΡΡΠΌΠΈ. Π‘Π°Π½ΡΠ·Π»Ρ Π² ΠΊΠ²Π°ΡΡΠΈΡΠ°Ρ ΡΠΎΠ²ΠΌΠ΅ΡΠ΅Π½Π½ΡΠ΅, Π² ΠΏΠΎΠ΄ΡΠ΅Π·Π΄Π΅ Π½Π΅Ρ ΠΎΠ±ΡΠ΅Π³ΠΎ ΠΌΡΡΠΎΡΠΎΠΏΡΠΎΠ²ΠΎΠ΄Π°, Π° ΠΊΠΎΠ»ΠΈΡΠ΅ΡΡΠ²ΠΎ ΠΊΠ²Π°ΡΡΠΈΡ Π½Π° ΠΏΠ»ΠΎΡΠ°Π΄ΠΊΠ΅ ΡΠΎΡΡΠ°Π²Π»ΡΠ΅Ρ 4. ΠΡΡΠΎΡΠ° ΠΏΠΎΡΠΎΠ»ΠΊΠΎΠ² Π² ΠΊΠ²Π°ΡΡΠΈΡΠ°Ρ β 2,5 ΠΌ2, ΠΊΡΡ Π½ΠΈ ΠΌΠ΅Π½Π΅Π΅ 6 ΠΌ2, Π΅ΡΠ»ΠΈ Π±ΡΡΡ ΡΠΎΡΠ½Π΅Π΅ β 5,8 ΠΌ2. ΠΠ²Π°ΡΡΠΈΡΡ 1, 2 ΠΈ 3-Ρ ΠΊΠΎΠΌΠ½Π°ΡΠ½ΡΠ΅.
ΠΠ°ΡΡΠΈΠ½ΠΊΠ° β ΡΠ΅ΡΡΠ΅ΠΆ:
1 ΠΊΠΎΠΌΠ½Π°ΡΠ½Π°Ρ:
2 ΠΊΠΎΠΌΠ½Π°ΡΠ½Π°Ρ:
3 ΠΊΠΎΠΌΠ½Π°ΡΠ½Π°Ρ:
Π‘Π΅ΡΠΈΡ 1-335 (1963 β 1967 Π³Π³.)
Π‘ 1963 ΠΏΠΎ 1967 Π³Π³. ΡΠ΅ΡΡΠΈΡΠΎΡΠΈΡ Π·Π°ΡΡΡΠ°ΠΈΠ²Π°Π»Π°ΡΡ Π΄ΠΎΠΌΠ°ΠΌΠΈ ΡΠ΅ΡΠΈΠΈ 1-335. ΠΡΠΎ ΡΠΎΠΆΠ΅ ΠΏΠ°Π½Π΅Π»ΡΠ½ΡΠ΅ Π·Π΄Π°Π½ΠΈΡ, Ρ Π²ΡΡΠΎΡΠΎΠΉ ΠΏΠΎΡΠΎΠ»ΠΊΠΎΠ² 2,54 ΠΌ., Π±Π°Π»ΠΊΠΎΠ½Π°ΠΌΠΈ Π² ΠΊΠ°ΠΆΠ΄ΠΎΠΉ ΠΊΠ²Π°ΡΡΠΈΡΠ΅, ΡΠΎΠ²ΠΌΠ΅ΡΠ΅Π½Π½ΡΠΌΠΈ ΡΠ°Π½ΡΠ·Π»Π°ΠΌΠΈ, ΠΎΡΡΡΡΡΡΠ²ΠΈΠ΅ΠΌ Π»ΠΈΡΡΠ° ΠΈ ΠΌΡΡΠΎΡΠΎΠΏΡΠΎΠ²ΠΎΠ΄Π°. ΠΠ»ΠΎΡΠ°Π΄Ρ ΠΊΡΡ Π½ΠΈ Π½Π΅ΠΌΠ½ΠΎΠ³ΠΎ Π±ΠΎΠ»ΡΡΠ΅, ΡΠ΅ΠΌ Π² ΠΏΡΠ΅Π΄ΡΠ΄ΡΡΠ΅ΠΉ ΡΠ΅ΡΠΈΠΈ β 6,2 ΠΌ2, ΠΏΠ»ΠΎΡΠ°Π΄Ρ ΠΏΠΎΡΠΎΠ»ΠΊΠΎΠ² β 2,5 ΠΌ. ΠΠ° ΠΏΠ»ΠΎΡΠ°Π΄ΠΊΠ΅ ΡΠ°ΡΠΏΠΎΠ»Π°Π³Π°Π΅ΡΡΡ ΡΠ΅ΡΡΡΠ΅ ΠΊΠ²Π°ΡΡΠΈΡΡ β ΠΎΡ 1 Π΄ΠΎ 3-Ρ ΠΊΠΎΠΌΠ½Π°ΡΠ½ΠΎΠΉ. ΠΠΎΠΌΠΈΠΌΠΎ Π±Π°Π»ΠΊΠΎΠ½ΠΎΠ² Π² ΠΊΠ²Π°ΡΡΠΈΡΠ°Ρ Π΅ΡΡΡ Π΄ΠΎΠΏΠΎΠ»Π½ΠΈΡΠ΅Π»ΡΠ½ΡΠ΅ ΠΊΠ»Π°Π΄ΠΎΠ²ΠΊΠΈ ΠΈ Π²ΡΡΡΠΎΠ΅Π½Π½ΡΠ΅ ΡΠΊΠ°ΡΡ.
1 ΠΊΠΎΠΌΠ½Π°ΡΠ½Π°Ρ:
2 ΠΊΠΎΠΌΠ½Π°ΡΠ½Π°Ρ:
Π‘Π΅ΡΠΈΡ 1-434 (1958 β 1964 Π³Π³.)
ΠΡΠ° ΡΠ΅ΡΠΈΡ ΡΡΡΠΎΠΈΠ»Π°ΡΡ Ρ 1958 Π³ΠΎΠ΄Π° ΠΏΠΎ 1964 Π³ΠΎΠ΄, Π² ΡΠ°Π·Π»ΠΈΡΠ½ΡΠ΅ Π³ΠΎΠ΄Π° Π·Π°ΡΡΡΠΎΠΉΠΊΠΈ Π½Π΅ΠΌΠ½ΠΎΠ³ΠΎ Π²ΠΈΠ΄ΠΎΠΈΠ·ΠΌΠ΅Π½ΡΠ»ΠΈΡΡ ΠΏΠ»Π°Π½ΠΈΡΠΎΠ²ΠΊΠΈ ΠΊΠ²Π°ΡΡΠΈΡ. Π’Π°ΠΊ, Π½Π°ΠΏΡΠΈΠΌΠ΅Ρ, Π² Π·Π΄Π°Π½ΠΈΡΡ 1958 Π³ΠΎΠ΄Π° Π² ΠΎΠ΄Π½ΠΎΠΊΠΎΠΌΠ½Π°ΡΠ½ΡΡ ΠΊΠ²Π°ΡΡΠΈΡΠ°Ρ ΠΏΠ»ΠΎΡΠ°Π΄Ρ ΠΆΠΈΠ»ΠΎΠΉ ΠΊΠΎΠΌΠ½Π°ΡΡ ΡΠΎΡΡΠ°Π²Π»ΡΠ»Π° 18,6 ΠΌ2, Π° Π² 1959 Π³ΠΎΠ΄Ρ ΠΎΠ½Π° ΡΠΌΠ΅Π½ΡΡΠΈΠ»Π°ΡΡ Π΄ΠΎ 18,2 ΠΌ2, Π² 1969 Π³. β ΠΏΠ»ΠΎΡΠ°Π΄Ρ ΠΊΠΎΠΌΠ½Π°ΡΡ ΡΠΎΡΡΠ°Π²Π»ΡΠ»Π° 17,7 ΠΌ2. Π ΡΠ°ΠΊ Π²ΠΎ Π²ΡΠ΅Ρ ΡΠΈΠΏΠ°Ρ ΠΊΠ²Π°ΡΡΠΈΡ ΠΏΠ»ΠΎΡΠ°Π΄Ρ ΠΆΠΈΠ»ΡΡ ΠΏΠΎΠΌΠ΅ΡΠ΅Π½ΠΈΠΉ Π²Π°ΡΡΠΈΡΠΎΠ²Π°Π»Π°ΡΡ Π² ΡΡΠΎΡΠΎΠ½Ρ ΡΠΌΠ΅Π½ΡΡΠ΅Π½ΠΈΡ ΠΈ ΡΠ²Π΅Π»ΠΈΡΠ΅Π½ΠΈΡ. Π Π²ΠΎΡ ΠΏΠ»ΠΎΡΠ°Π΄Ρ ΠΊΡΡ Π½ΠΈ ΠΎΡΡΠ°Π»Π°ΡΡ Π½Π΅ΠΈΠ·ΠΌΠ΅Π½Π½ΠΎΠΉ β 5,8 ΠΌ2, ΠΊΠ°ΠΊ ΠΈ Π²ΡΡΠΎΡΠ° ΠΏΠΎΡΠΎΠ»ΠΊΠΎΠ² β 2,5 ΠΌ. ΠΠΎΠΌΠ° β ΠΊΠΈΡΠΏΠΈΡΠ½ΡΠ΅, ΡΠΎΠ²ΠΌΠ΅ΡΠ΅Π½Π½ΡΠ΅ ΡΠ°Π½ΡΠ·Π»Ρ, Π° Π² ΠΊΠ°ΠΆΠ΄ΠΎΠΉ ΠΊΠ²Π°ΡΡΠΈΡΠ΅ Π΅ΡΡΡ Π±Π°Π»ΠΊΠΎΠ½, ΠΊΠ»Π°Π΄ΠΎΠ²Π°Ρ ΠΈ Π²ΡΡΡΠΎΠ΅Π½Π½ΡΠ΅ ΡΠΊΠ°ΡΡ.
ΠΠ°ΡΡΠΈΠ½ΠΊΠΈ β ΡΠ΅ΡΡΠ΅ΠΆ (ΠΏΠΎ Π³ΠΎΠ΄Π°ΠΌ)
1 ΠΊΠΎΠΌΠ½Π°ΡΠ½Π°Ρ 1958 Π³ΠΎΠ΄
1 ΠΊΠΎΠΌΠ½Π°ΡΠ½Π°Ρ 1959 Π³ΠΎΠ΄
1 ΠΊΠΎΠΌΠ½Π°ΡΠ½Π°Ρ 1960 Π³ΠΎΠ΄
1 ΠΊΠΎΠΌΠ½Π°ΡΠ½Π°Ρ 1961 Π³ΠΎΠ΄
1 ΠΊΠΎΠΌΠ½Π°ΡΠ½Π°Ρ 1964 Π³ΠΎΠ΄
2 ΠΊΠΎΠΌΠ½Π°ΡΠ½Π°Ρ 1958 Π³ΠΎΠ΄
2 ΠΊΠΎΠΌΠ½Π°ΡΠ½Π°Ρ 1959 Π³ΠΎΠ΄
2 ΠΊΠΎΠΌΠ½Π°ΡΠ½Π°Ρ 1960 Π³ΠΎΠ΄
2 ΠΊΠΎΠΌΠ½Π°ΡΠ½Π°Ρ 1964 Π³ΠΎΠ΄
3 ΠΊΠΎΠΌΠ½Π°ΡΠ½Π°Ρ 1958 Π³ΠΎΠ΄
3 ΠΊΠΎΠΌΠ½Π°ΡΠ½Π°Ρ 1959 Π³ΠΎΠ΄
3 ΠΊΠΎΠΌΠ½Π°ΡΠ½Π°Ρ 1960 Π³ΠΎΠ΄
3 ΠΊΠΎΠΌΠ½Π°ΡΠ½Π°Ρ 1961 Π³ΠΎΠ΄
3 ΠΊΠΎΠΌΠ½Π°ΡΠ½Π°Ρ 1964 Π³ΠΎΠ΄
Π‘Π΅ΡΠΈΡ 1-467 (1959 β 1969 Π³Π³.)
ΠΠΎΡΠ»Π΅Π΄Π½ΡΡ ΡΠ΅ΡΠΈΡ, ΠΊΠΎΡΠΎΡΡΡ ΠΌΡ ΡΠ°ΡΡΠΌΠΎΡΡΠΈΠΌ, ΡΡΡΠΎΠΈΠ»Π°ΡΡ Ρ 1959 ΠΏΠΎ 1969 Π³ΠΎΠ΄. ΠΡΠΎ Π±Π»ΠΎΡΠ½ΡΠ΅ Π΄ΠΎΠΌΠ°, Π²ΡΡΠΎΡΠ° ΠΏΠΎΡΠΎΠ»ΠΊΠΎΠ², ΠΊΠ°ΠΊ ΠΈ Π² ΠΏΡΠ΅Π΄ΡΠ΄ΡΡΠΈΡ ΡΠ΅ΡΠΈΡΡ β 2,5 ΠΌ, ΠΏΠ»ΠΎΡΠ°Π΄Ρ ΠΊΡΡ Π½ΠΈ β ΠΎΡ 6,6 ΠΌ2 Π΄ΠΎ 7,7 ΠΌ2. ΠΠΎ Π²ΡΠ΅Ρ ΠΊΠ²Π°ΡΡΠΈΡΠ°Ρ (1, 2 ΠΈ 3-Ρ ΠΊΠΎΠΌΠ½Π°ΡΠ½ΡΡ ) Π΅ΡΡΡ Π±Π°Π»ΠΊΠΎΠ½Ρ ΠΊΡΠΎΠΌΠ΅ 1 ΡΡΠ°ΠΆΠ°. Π‘Π°Π½ΡΠ·Π»Ρ Π² ΡΠ°Π½Π½ΠΈΡ Π²Π΅ΡΡΠΈΡΡ Π·Π΄Π°Π½ΠΈΠΉ β ΡΠ°Π·Π΄Π΅Π»ΡΠ½ΡΠ΅, Π° Π² ΠΏΠΎΠ·Π΄Π½ΠΈΡ β ΡΠΎΠ²ΠΌΠ΅ΡΠ΅Π½Π½ΡΠ΅, ΠΎΡΡΡΡΡΡΠ²ΡΠ΅Ρ ΠΌΡΡΠΎΡΠΎΠΏΡΠΎΠ²ΠΎΠ΄. Π Π΄ΠΎΡΡΠΎΠΈΠ½ΡΡΠ²Π°ΠΌ ΠΊΠ²Π°ΡΡΠΈΡ ΡΡΠΎΠΉ ΡΠ΅ΡΠΈΠΈ ΠΎΡΠ½ΠΎΡΡΡ Π²ΠΎΠ·ΠΌΠΎΠΆΠ½ΠΎΡΡΡ ΠΈΡ ΠΏΠ΅ΡΠ΅ΠΏΠ»Π°Π½ΠΈΡΠΎΠ²ΠΊΠΈ, ΠΊ Π½Π΅Π΄ΠΎΡΡΠ°ΡΠΊΠ°ΠΌ β ΡΠΌΠ΅ΠΆΠ½ΡΠ΅ ΠΊΠΎΠΌΠ½Π°ΡΡ Π²ΠΎ ΠΌΠ½ΠΎΠ³ΠΈΡ ΠΊΠ²Π°ΡΡΠΈΡΠ°Ρ . ΠΠ°ΡΡΠΈΠ½ΠΊΠ° β ΡΠ΅ΡΡΠ΅ΠΆ:

ΠΠΈΠ΄Π΅ΠΎ Ρ ΡΡΡΡΠ²ΠΎΠΊ
Β
Π§ΠΈΡΠ°ΠΉΡΠ΅ Π΄Π°Π»Π΅Π΅:
comments powered by HyperCommentsbogiremonta.ru
ΠΠ»Π°Π½ΠΈΡΠΎΠ²ΠΊΠ° Ρ ΡΡΡΠ΅Π²ΠΊΠΈ — 75 ΡΠΎΡΠΎ ΠΈΠ΄Π΅ΠΉ ΡΡΠΈΠ»ΡΠ½ΠΎΠ³ΠΎ Π΄ΠΈΠ·Π°ΠΉΠ½Π° Π² ΡΠΎΠ²ΡΠ΅ΠΌΠ΅Π½Π½ΠΎΠΌ ΡΡΠΈΠ»Π΅
ΠΠ°ΠΊ ΠΏΡΠ°Π²ΠΈΠ»ΠΎ, ΠΏΠΎΡΠ»Π΅ ΠΏΡΠΈΠΎΠ±ΡΠ΅ΡΠ΅Π½ΠΈΡ ΠΆΠΈΠ»ΡΡ Π²ΠΎΠ·Π½ΠΈΠΊΠ°Π΅Ρ ΠΏΡΠΎΠ±Π»Π΅ΠΌΠ° ΠΏΠ»Π°Π½ΠΈΡΠΎΠ²ΠΊΠΈ ΠΊΠΎΠΌΠ½Π°Ρ, ΠΎΡΠΎΠ±Π΅Π½Π½ΠΎ, Π΅ΡΠ»ΠΈ ΡΠ°ΠΊΠ°Ρ ΠΆΠΈΠ»Π°Ρ ΠΏΠ»ΠΎΡΠ°Π΄Ρ ΡΠ²Π»ΡΠ΅ΡΡΡ Π₯ΡΡΡΠ΅Π²ΠΊΠΎΠΉ.

Π Π΄Π°Π½Π½ΠΎΠΌ ΡΠ»ΡΡΠ°Π΅ ΠΊΠ²Π°ΡΡΠΈΡΡ Π½Π΅ ΠΎΡΠ΅Π½Ρ-ΡΠΎ ΠΎΡΠ»ΠΈΡΠ°ΡΡΡΡ ΠΊΡΡΠΏΠ½ΠΎΠ³Π°Π±Π°ΡΠΈΡΠ½ΠΎΡΡΡΡ, ΠΎΠ΄Π½Π°ΠΊΠΎ ΡΠ°ΡΠΏΡΠ΅Π΄Π΅Π»ΠΈΡΡ ΠΈΠΌΠ΅ΡΡΠ΅Π΅ΡΡ ΠΏΡΠΎΡΡΡΠ°Π½ΡΡΠ²ΠΎ ΠΈ ΡΠΎΠ·Π΄Π°ΡΡ ΠΌΠ°ΠΊΡΠΈΠΌΠ°Π»ΡΠ½ΡΠΉ ΡΡΡ Π΄Π»Ρ ΠΆΠΈΠ»ΡΡ Π² Π½Π΅ΠΉ Π²ΡΠ΅-ΡΠ°ΠΊΠΈ ΠΏΡΠΈΠ΄Π΅ΡΡΡ.

Π Π΄Π°Π½Π½ΠΎΠΉ ΡΡΠ°ΡΡΠ΅ ΠΌΡ ΡΠ°ΡΡΠΌΠΎΡΡΠΈΠΌ, ΠΊΠ°ΠΊΠΈΠΌ ΠΎΠ±ΡΠ°Π·ΠΎΠΌ ΠΎΡΡΡΠ΅ΡΡΠ²Π»ΡΠ΅ΡΡΡ ΠΏΠ»Π°Π½ΠΈΡΠΎΠ²ΠΊΠ° ΠΊΠ²Π°ΡΡΠΈΡ Π² Ρ ΡΡΡΠ΅Π²ΠΊΠ°Ρ .

ΠΠ΅ΡΠΊΠΎΠ»ΡΠΊΠΎ ΡΠ΄Π°ΡΠ½ΡΡ Π²Π°ΡΠΈΠ°Π½ΡΠΎΠ² ΠΏΠ»Π°Π½ΠΈΡΠΎΠ²ΠΊΠΈ Π₯ΡΡΡΠ΅Π²ΠΊΠΈ
Π’Π°ΠΊΠΎΠ³ΠΎ ΡΠΈΠΏΠ° Π΄ΠΎΠΌΠ° Π² ΠΎΡΠ½ΠΎΠ²Π½ΠΎΠΌ ΠΈΠΌΠ΅ΡΡ ΠΏΡΡΡ ΡΡΠ°ΠΆΠ΅ΠΉ ΠΈ ΠΈΡ ΠΏΠΎΡΡΡΠΎΠ΅Π½ΠΈΠ΅ ΠΎΡΠ½ΠΎΡΠΈΡΡΡ ΠΊ Π΄Π°Π»Π΅ΠΊΠΈΠΌ 50-ΡΠΌ Π³ΠΎΠ΄Π°ΠΌ. Π’Π΅ Π²ΡΠ΅ΠΌΠ΅Π½Π° ΠΎΡΠ»ΠΈΡΠ°Π»ΠΈΡΡ Π½Π΅Ρ Π²Π°ΡΠΊΠΎΠΉ ΠΆΠΈΠ»ΡΡ ΠΏΠΎΠΌΠ΅ΡΠ΅Π½ΠΈΠΉ.

ΠΠΎΡΡΠΎΠΌΡ Π±ΡΠ»Π° ΡΠΎΠ·Π΄Π°Π½Π° ΠΎΡΠΎΠ±Π΅Π½Π½Π°Ρ ΡΠΈΡΡΠ΅ΠΌΠ° ΠΏΠΎΡΡΡΠΎΠΉΠΊΠΈ ΠΌΠ½ΠΎΠ³ΠΎΠΊΠ²Π°ΡΡΠΈΡΠ½ΡΡ ΡΠΈΠΏΠΎΠ²ΡΡ Π·Π΄Π°Π½ΠΈΠΉ. Π ΠΎΡΠ½ΠΎΠ²Π½ΠΎΠΌ Π΄Π»Ρ ΡΡΠΎΠ³ΠΎ ΠΈΡΠΏΠΎΠ»ΡΠ·ΠΎΠ²Π°Π»ΠΈΡΡ ΡΠΏΠ΅ΡΠΈΠ°Π»ΡΠ½ΡΠ΅ Π³ΠΎΡΠΎΠ²ΡΠ΅ Π±Π»ΠΎΠΊΠΈ, ΡΠ°ΠΊ ΠΊΠ°ΠΊ ΡΡΠΎ Π·Π½Π°ΡΠΈΡΠ΅Π»ΡΠ½ΠΎ ΡΠΎΠΊΡΠ°ΡΠ°Π»ΠΎ Π²ΡΠ΅ΠΌΠ΅Π½Π½ΡΠ΅ ΡΠ°ΠΌΠΊΠΈ, Π²ΡΠ΄Π΅Π»ΡΠ΅ΠΌΡΠ΅ Π½Π΅ΠΏΠΎΡΡΠ΅Π΄ΡΡΠ²Π΅Π½Π½ΠΎ Π½Π° ΡΡΡΠΎΠΈΡΠ΅Π»ΡΡΡΠ²ΠΎ.
Π‘Π°ΠΌΠ° ΠΊΠ²Π°ΡΡΠΈΡΠ° ΠΈΠΌΠ΅Π»Π° ΠΎΡΠ΅Π½Ρ ΠΌΠ°Π»Π΅Π½ΡΠΊΠΎΠ΅ ΠΊΡΡ ΠΎΠ½Π½ΠΎΠ΅ ΠΏΠΎΠΌΠ΅ΡΠ΅Π½ΠΈΠ΅ (Π½Π΅ Π±ΠΎΠ»Π΅Π΅ 6 ΠΊΠ²Π°Π΄ΡΠ°ΡΠ½ΡΡ ΠΌΠ΅ΡΡΠΎΠ²), ΡΠΌΠ΅ΠΆΠ½ΡΠ΅ ΠΊΠΎΠΌΠ½Π°ΡΡ ΠΈ ΠΎΠ±ΡΠΈΠΉ (ΡΠΎΠ²ΠΌΠ΅ΡΠ΅Π½Π½ΡΠΉ) ΡΠ°Π½ΡΠ·Π΅Π».

ΠΡΠ΅ ΠΎΠ΄Π½ΠΎΠΉ ΠΎΡΠ»ΠΈΡΠΈΡΠ΅Π»ΡΠ½ΠΎΠΉ ΠΎΡΠΎΠ±Π΅Π½Π½ΠΎΡΡΡΡ ΡΠ²Π»ΡΠ΅ΡΡΡ Π½Π°Π»ΠΈΡΠΈΠ΅ Π½ΠΈΠ·ΠΊΠΈΡ ΠΏΠΎΡΠΎΠ»ΠΊΠΎΠ². ΠΠ΄Π½Π°ΠΊΠΎ ΠΈ ΡΠ°ΠΊΠΎΠ΅ ΠΆΠΈΠ»ΡΠ΅ ΠΌΠΎΠΆΠ½ΠΎ Π±Π΅Π· ΠΎΡΠΎΠ±ΠΎΠ³ΠΎ ΡΡΡΠ΄Π° ΠΏΡΠ΅ΠΎΠ±ΡΠ°Π·ΠΎΠ²Π°ΡΡ ΠΈ ΡΠ΄Π΅Π»Π°ΡΡ ΠΎΡΠ΅Π½Ρ ΡΡΡΠ½ΡΠΌ.

Π§ΡΠΎ ΠΊΠ°ΡΠ°Π΅ΡΡΡ ΠΎΠ΄Π½ΠΎΠΊΠΎΠΌΠ½Π°ΡΠ½ΠΎΠΉ Ρ ΡΡΡΠ΅Π²ΠΊΠΈ, ΠΏΠ»Π°Π½ΠΈΡΠΎΠ²ΠΊΠ° Π·Π΄Π΅ΡΡ ΡΡΠ°Π·Ρ ΠΆΠ΅ ΠΈΡΠΊΠ»ΡΡΠ°Π΅Ρ ΡΠΎΠ·Π΄Π°Π½ΠΈΠ΅ ΠΎΡΠ΄Π΅Π»ΡΠ½ΠΎΠΉ ΡΠΏΠ°Π»ΡΠ½ΠΈ. ΠΠ΄Π΅ΡΡ ΡΠΊΠΎΡΠ΅Π΅ ΠΊΠΎΠΌΠ½Π°ΡΠ° Π±ΡΠ΄Π΅Ρ Π²ΡΠΏΠΎΠ»Π½ΡΡΡ ΡΡΠ°Π·Ρ Π½Π΅ΡΠΊΠΎΠ»ΡΠΊΠΎ Π²Π°ΠΆΠ½ΡΡ ΠΈ ΠΏΠΎΠ»Π΅Π·Π½ΡΡ ΡΡΠ½ΠΊΡΠΈΠΉ. ΠΠ»Π°Π²Π½ΠΎΠ΅ Π³ΡΠ°ΠΌΠΎΡΠ½ΠΎ ΠΏΠΎΠ΄ΠΎΠΉΡΠΈ ΠΊ ΡΠ°Π·Π΄Π΅Π»Π΅Π½ΠΈΡ ΠΏΡΠΎΡΡΡΠ°Π½ΡΡΠ²Π° Π½Π° Π·ΠΎΠ½Ρ.

ΠΡΠ΅Π΄ΠΌΠ΅ΡΡ ΠΌΠ΅Π±Π΅Π»ΠΈ Π΄Π»Ρ ΠΏΠ»Π°Π½ΠΈΡΠΎΠ²ΠΊΠΈ Ρ ΡΡΡΠ΅Π²ΠΊΠΈ Π»ΡΡΡΠ΅ ΠΏΡΠΈΠΎΠ±ΡΠ΅ΡΠ°ΡΡ ΠΈΠ· ΠΊΠ»Π°ΡΡΠ° ΡΡΠ°Π½ΡΡΠΎΡΠΌΠ΅ΡΠΎΠ², ΠΏΡΠΈΡΠ΅ΠΌ ΠΊ ΡΠ°ΠΊΠΎΠΉ ΠΊΠΎΠ½ΡΡΡΡΠΊΡΠΈΠΈ ΡΠ»Π΅Π΄ΡΠ΅Ρ ΠΎΡΠ½Π΅ΡΡΠΈ Π΄Π°ΠΆΠ΅ Π΄Π²Π΅ΡΠΈ.

ΠΡΠ΅Π½Ρ ΡΠ°ΡΡΠΎ Π»ΡΠ΄ΠΈ ΠΏΡΠΈΠ±Π΅Π³Π°ΡΡ ΠΊ ΡΠ²Π΅Π»ΠΈΡΠ΅Π½ΠΈΡ ΠΊΠΎΠΌΠ½Π°ΡΠ½ΠΎΠ³ΠΎ ΠΏΡΠΎΡΡΡΠ°Π½ΡΡΠ²Π° Π·Π° ΡΡΠ΅Ρ ΠΊΠΎΡΠΈΠ΄ΠΎΡΠ°. Π‘Π»Π΅Π΄ΡΠ΅Ρ ΠΎΡΠΌΠ΅ΡΠΈΡΡ, ΡΡΠΎ ΠΈΠΌΠ΅Π΅Ρ ΠΎΡΠ΅Π½Ρ Π½Π΅ΠΏΠ»ΠΎΡ Π°Ρ Π²ΠΎΠ·ΠΌΠΎΠΆΠ½ΠΎΡΡΡ Π·Π°ΡΡΠ΅ΠΊΠ»ΠΈΡΡ ΠΈ ΡΡΠ΅ΠΏΠ»ΠΈΡΡ Π±Π°Π»ΠΊΠΎΠ½, Π° ΠΏΡΠΈ ΠΆΠ΅Π»Π°Π½ΠΈΠΈ ΠΈ Π²ΠΎΠ·ΠΌΠΎΠΆΠ½ΠΎΡΡΠΈ Π΄Π°ΠΆΠ΅ ΡΠ²Π΅Π»ΠΈΡΠΈΡΡ Π΅Π³ΠΎ ΠΏΠ»ΠΎΡΠ°Π΄Ρ.

Π’Π°ΠΊΠΈΠΌ ΠΎΠ±ΡΠ°Π·ΠΎΠΌ ΠΏΠΎΡΠ²Π»ΡΠ΅ΡΡΡ ΠΎΡΠ»ΠΈΡΠ½Π°Ρ Π²ΠΎΠ·ΠΌΠΎΠΆΠ½ΠΎΡΡΡ ΠΏΡΠΈΠΎΠ±ΡΠ΅ΡΡΠΈ ΠΌΠ΅ΡΡΠΎ Π΄Π»Ρ ΡΡΡΠ°Π½ΠΎΠ²ΠΊΠΈ ΠΊΡΠ΅ΡΠ»Π°-ΠΊΡΠΎΠ²Π°ΡΠΈ.

ΠΡΠΎΠ±Π΅Π½Π½ΠΎΡΡΠΈ ΠΎΠ±Π»Π°Π³ΠΎΡΠ°ΠΆΠΈΠ²Π°Π½ΠΈΡ ΠΌΠ½ΠΎΠ³ΠΎΠΊΠΎΠΌΠ½Π°ΡΠ½ΡΡ Ρ ΡΡΡΠ΅Π²ΠΎΠΊ
Π ΠΏΠ»Π°Π½ΠΈΡΠΎΠ²ΠΊΠ° Π΄Π²ΡΡ ΠΊΠΎΠΌΠ½Π°ΡΠ½ΠΎΠΉ Ρ ΡΡΡΠ΅Π²ΠΊΠΈ ΠΏΠΎΡΠ²Π»ΡΠ΅ΡΡΡ ΡΠ½ΠΈΠΊΠ°Π»ΡΠ½Π°Ρ Π²ΠΎΠ·ΠΌΠΎΠΆΠ½ΠΎΡΡΡ ΡΠΎΠ·Π΄Π°ΡΡ ΠΎΡΠ΄Π΅Π»ΡΠ½ΡΡ ΡΠΏΠ°Π»ΡΠ½ΡΡ ΠΊΠΎΠΌΠ½Π°ΡΡ, ΡΡΠΎ Π±ΡΠ΄Π΅Ρ ΡΠ²Π»ΡΡΡΡΡ ΡΠ²ΠΎΠ΅Π³ΠΎ ΡΠΎΠ΄Π° ΠΏΠ΅ΡΡΠΎΠ½Π°Π»ΡΠ½ΠΎΠΉ ΡΠ΅ΡΡΠΈΡΠΎΡΠΈΠ΅ΠΉ.

ΠΠ°Π»ΠΊΠΎΠ½Π½ΡΡ ΡΠ°ΡΡΡ ΡΠ°ΠΊΠΆΠ΅ ΡΡΠΎΠΈΡ ΠΏΠΎ Π²ΠΎΠ·ΠΌΠΎΠΆΠ½ΠΎΡΡΠΈ Π·Π°Π΄Π΅ΠΉΡΡΠ²ΠΎΠ²Π°ΡΡ, ΠΎΠ±ΠΎΡΡΠ΄ΠΎΠ²Π°Π² Π½Π° Π½Π΅ΠΌ Π½Π΅Π±ΠΎΠ»ΡΡΠΎΠΉ ΠΊΠ°Π±ΠΈΠ½Π΅Ρ Π΄Π»Ρ ΡΠ°Π±ΠΎΡΡ, ΠΏΡΠΈΡΠ΅ΠΌ Π΅Π³ΠΎ ΠΏΠ»ΠΎΡΠ°Π΄Ρ ΡΠ°ΠΊΠΆΠ΅ ΠΏΠΎ ΠΆΠ΅Π»Π°Π½ΠΈΡ ΠΌΠΎΠΆΠ½ΠΎ ΡΠ²Π΅Π»ΠΈΡΠΈΡΡ.

Π’Π°ΠΊΠ°Ρ ΠΏΡΠΎΡΠ΅Π΄ΡΡΠ° ΠΏΠΎΡΡΠ΅Π±ΡΠ΅Ρ Π·Π°ΡΡΠ°ΡΡ ΡΠΈΠ» ΠΈ Π²ΡΠ΅ΠΌΠ΅Π½ΠΈ, ΡΠ°ΠΊ ΠΊΠ°ΠΊ ΠΏΡΠ΅Π΄Π²Π°ΡΠΈΡΠ΅Π»ΡΠ½ΠΎ Π½Π΅ΠΎΠ±Ρ ΠΎΠ΄ΠΈΠΌΠΎ ΡΠΎΠ·Π΄Π°ΡΡ ΠΏΡΠΎΠ΅ΠΊΡ ΠΏΠΎ ΡΠ²Π΅Π»ΠΈΡΠ΅Π½ΠΈΡ Π±Π°Π»ΠΊΠΎΠ½Π° ΠΈ ΠΏΠΎΡΡΠΈΡΡ ΡΠΎΠ³Π»Π°ΡΠΈΠ΅ Π½Π° Π΅Π³ΠΎ ΠΎΡΡΡΠ΅ΡΡΠ²Π»Π΅Π½ΠΈΠ΅ Π² ΡΠΎΠΎΡΠ²Π΅ΡΡΡΠ²ΡΡΡΠΈΡ ΠΈΠ½ΡΡΠ°Π½ΡΠΈΡΡ .

ΠΠΎΠΌΠΈΠΌΠΎ Π΄ΠΎΠΏΠΎΠ»Π½ΠΈΡΠ΅Π»ΡΠ½ΠΎΠ³ΠΎ ΡΠ°Π±ΠΎΡΠ΅Π³ΠΎ ΠΌΠ΅ΡΡΠ° ΠΌΠΎΠΆΠ½ΠΎ Π² ΠΈΡΠΎΠ³Π΅ ΠΏΠΎΡΡΠΈΡΡ Π΅ΡΠ΅ ΠΈ ΠΎΡΠ΄Π΅Π»ΡΠ½ΡΠΉ Π²ΡΡ ΠΎΠ΄ Π½Π° Π½Π΅Π³ΠΎ ΡΠΎ ΡΡΠΎΡΠΎΠ½Ρ ΠΊΡΡ ΠΎΠ½Π½ΠΎΠΉ ΡΠ°ΡΡΠΈ.

Π‘ΡΡΠ΅ΡΡΠ²ΡΠ΅Ρ Π½Π΅ΡΠΊΠΎΠ»ΡΠΊΠΎ Π½Π°ΠΈΠ±ΠΎΠ»Π΅Π΅ Π²ΠΎΡΡΡΠ΅Π±ΠΎΠ²Π°Π½Π½ΡΡ Π²Π°ΡΠΈΠ°Π½ΡΠΎΠ² ΠΏΠ»Π°Π½ΠΈΡΠΎΠ²ΠΊΠΈ Ρ ΡΡΡΠ΅Π²ΠΎΠΊ:

Β«Π’ΡΠ°ΠΌΠ²Π°ΠΉΒ». Π Π΄Π°Π½Π½ΠΎΠΌ ΡΠ»ΡΡΠ°Π΅ ΡΡΡΠ΅ΡΡΠ²ΡΠ΅Ρ ΡΠΎΠ»ΡΠΊΠΎ ΠΎΠ΄ΠΈΠ½ ΡΠΏΠΎΡΠΎΠ± ΡΠ°ΡΡΡΠ°Π½ΠΎΠ²ΠΊΠΈ ΠΌΠ΅Π±Π΅Π»ΠΈ (ΠΏΠΎ ΠΏΠ΅ΡΠΈΠΌΠ΅ΡΡΡ ΠΏΠΎΠΌΠ΅ΡΠ΅Π½ΠΈΡ), ΡΡΠΎ ΠΏΡΠ΅Π΄ΡΡΠ°Π²Π»Π΅Π½ΠΎ Π½Π° ΡΠΎΡΠΎ ΠΏΠ»Π°Π½ΠΈΡΠΎΠ²ΠΊΠΈ Ρ ΡΡΡΠ΅Π²ΠΊΠΈ, ΠΏΡΠΈΡΠ΅ΠΌ Π½Π°Π»ΠΈΡΠΈΠ΅ Π±Π°Π»ΠΊΠΎΠ½Π½ΠΎΠ³ΠΎ ΠΏΡΠΎΡΡΡΠ°Π½ΡΡΠ²Π° Π±ΡΠ΄Π΅Ρ ΠΊΡΠ°ΠΉΠ½Π΅ Π½Π΅ΠΎΠ±Ρ ΠΎΠ΄ΠΈΠΌΠΎ.

Β«Π Π°ΡΠΏΠ°ΡΠΎΠ½ΠΊΠ°Β». ΠΡΡΡΠ΅ Π²ΠΎΡΠΏΠΎΠ»ΡΠ·ΠΎΠ²Π°ΡΡΡΡ ΡΠΎΠ·Π΄Π°Π½ΠΈΠ΅ΠΌ ΠΏΠΎΠ΄ΠΈΡΠΌΠ° Π½Π΅Π±ΠΎΠ»ΡΡΠΎΠ³ΠΎ ΡΠ°Π·ΠΌΠ΅ΡΠ°. ΠΠΎΡΠΎΡΡΠΉ Π±ΡΠ΄Π΅Ρ Π²ΠΊΠ»ΡΡΠ°ΡΡ Π² ΡΠ΅Π±Ρ ΡΡΠΈΠΊΠΈ Π²ΡΠ΄Π²ΠΈΠΆΠ½ΠΎΠ³ΠΎ Ρ Π°ΡΠ°ΠΊΡΠ΅ΡΠ°.

Π Π΄Π°Π½Π½ΠΎΠΌ ΡΠ»ΡΡΠ°Π΅ ΠΎΡΠ»ΠΈΡΠ½ΠΎ Π²ΠΏΠΈΡΡΡΡΡ Π½Π°ΠΏΠΎΠ»ΡΠ½ΡΠ΅ ΡΠ²Π΅ΡΠΈΠ»ΡΠ½ΠΈΠΊΠΈ ΠΈ ΡΠΊΠ°Ρ-ΠΊΡΠΏΠ΅. ΠΡΠΈ ΠΆΠ΅Π»Π°Π½ΠΈΠΈ ΠΌΠΎΠΆΠ½ΠΎ ΡΠ²Π΅Π»ΠΈΡΠΈΡΡ ΡΠ°Π·ΠΌΠ΅ΡΡ ΡΡΠ°Π½Π΄Π°ΡΡΠ½ΠΎΠ³ΠΎ ΠΏΠΎΠ΄ΠΎΠΊΠΎΠ½Π½ΠΈΠΊΠ° ΠΈ ΡΠΎΠ³Π΄Π° ΠΎΠ½ Π±Π΅Π· ΠΎΡΠΎΠ±ΠΎΠ³ΠΎ ΡΡΡΠ΄Π° ΡΠΌΠΎΠΆΠ΅Ρ Π·Π°ΠΌΠ΅Π½ΠΈΡΡ ΡΡΠ°Π΄ΠΈΡΠΈΠΎΠ½Π½ΡΠΉ ΡΡΠ°Π»Π΅ΡΠ½ΡΠΉ ΡΡΠΎΠ»ΠΈΠΊ. ΠΡΠΎ Π΄Π°ΡΡ Π²ΠΎΠ·ΠΌΠΎΠΆΠ½ΠΎΡΡΡ ΡΠ°Π·ΠΌΠ΅ΡΡΠΈΡΡ Π²ΡΠ΅ Π½Π΅ΠΎΠ±Ρ ΠΎΠ΄ΠΈΠΌΡΠ΅ Π²Π΅ΡΠΈ Π² ΠΏΡΠΎΡΡΡΠ°Π½ΡΡΠ²Π΅ Π²Π°ΡΠ΅ΠΉ ΠΊΠΎΠΌΠ½Π°ΡΡ.

Π§ΡΠΎ ΠΊΠ°ΡΠ°Π΅ΡΡΡ ΡΡΠ΅Ρ ΠΊΠΎΠΌΠ½Π°ΡΠ½ΡΡ Π°ΠΏΠ°ΡΡΠ°ΠΌΠ΅Π½ΡΠΎΠ², ΡΠΎ Π² Π΄Π°Π½Π½ΠΎΠΌ ΡΠ»ΡΡΠ°Π΅ ΠΎΠ΄Π½Π° ΠΈΠ· ΠΊΠΎΠΌΠ½Π°Ρ Π±ΡΠ΄Π΅Ρ Π² ΠΎΠ±ΡΠ·Π°ΡΠ΅Π»ΡΠ½ΠΎΠΌ ΠΏΠΎΡΡΠ΄ΠΊΠ΅ Π½Π°Ρ ΠΎΠ΄ΠΈΡΡΡΡ ΠΏΠΎ ΡΠΎΡΠ΅Π΄ΡΡΠ²Ρ Ρ ΠΊΠ»Π°Π΄ΠΎΠ²ΠΊΠΎΠΉ, ΡΡΠΎ ΡΠ²ΡΠ·Π°Π½ΠΎ Π²ΡΠ΅ Ρ ΡΠΎΠΉ ΠΆΠ΅ ΡΠΈΠΏΠΎΠ²ΠΎΠΉ ΠΏΠ»Π°Π½ΠΈΡΠΎΠ²ΠΊΠΎΠΉ Ρ ΡΡΡΠ΅Π²ΠΊΠΈ.

ΠΠΌΠ΅Π½Π½ΠΎ ΠΎΠ½Π° ΠΈ Π΄ΠΎΠ»ΠΆΠ½Π° Π±ΡΡΡ ΡΠΏΠ°Π»ΡΠ½ΠΎΠΉ, Π° Π²ΠΎΡ ΠΏΡΠΎΡΡΡΠ°Π½ΡΡΠ²ΠΎ ΠΊΠ»Π°Π΄ΠΎΠ²ΠΊΠΈ ΠΌΠΎΠΆΠ½ΠΎ ΠΏΠ΅ΡΠ΅Π΄Π΅Π»Π°ΡΡ, Π½Π°ΠΏΡΠΈΠΌΠ΅Ρ, Π² Π³Π°ΡΠ΄Π΅ΡΠΎΠ±Π½ΡΡ.

Π’Π°ΠΊ ΠΊΠΎΠΌΠ½Π°ΡΠ° ΠΏΠΎΠ»ΡΡΠΈΡΡΡ ΠΌΠ΅Π½Π΅Π΅ Π½Π°Π³ΡΡΠΆΠ΅Π½Π½ΠΎΠΉ Π² ΠΏΠ»Π°Π½Π΅ ΠΏΡΠ΅Π΄ΠΌΠ΅ΡΠΎΠ² ΠΌΠ΅Π±Π΅Π»ΠΈ, ΡΠΎΠΎΡΠ²Π΅ΡΡΡΠ²Π΅Π½Π½ΠΎ, ΡΠ²ΠΎΠ±ΠΎΠ΄Π½ΠΎΠ³ΠΎ ΠΏΡΠΎΡΡΡΠ°Π½ΡΡΠ²Π° Π±ΡΠ΄Π΅Ρ Π½Π°ΠΌΠ½ΠΎΠ³ΠΎ Π±ΠΎΠ»ΡΡΠ΅.

ΠΠ΅ΡΠΊΠΎΠ»ΡΠΊΠΎ ΠΎΠ±ΡΠΈΡ ΡΠ΅ΠΊΠΎΠΌΠ΅Π½Π΄Π°ΡΠΈΠΉ
ΠΠ»Ρ ΡΠ΄ΠΎΠ±ΡΡΠ²Π° ΡΠΎΠ·Π΄Π°Π½ΠΈΡ ΠΈΠ΄Π΅Π°Π»ΡΠ½ΠΎΠ³ΠΎ Π΄ΠΈΠ·Π°ΠΉΠ½Π° ΠΏΠ»Π°Π½ΠΈΡΠΎΠ²ΠΊΠΈ Ρ ΡΡΡΠ΅Π²ΠΊΠΈ Π² ΠΎΠ΄Π½ΠΎΠΊΠΎΠΌΠ½Π°ΡΠ½ΠΎΠΉ ΠΊΠ²Π°ΡΡΠΈΡΠ΅ ΡΠ΅ΠΊΠΎΠΌΠ΅Π½Π΄ΡΠ΅ΡΡΡ ΡΡΡΠ°Π½ΠΎΠ²ΠΈΡΡ ΡΠΊΠ°Ρ, Π½Π°Π΄Π΅Π»Π΅Π½Π½ΡΠΉ ΠΎΡΠ½ΠΎΡΠΈΡΠ΅Π»ΡΠ½ΠΎ Π»Π΅Π³ΠΊΠΈΠΌΠΈ ΡΠ°ΡΠ°Π΄Π°ΠΌΠΈ ΠΈΠ· ΡΡΠ΅ΠΊΠ»Π° ΠΈΠ»ΠΈ Π·Π΅ΡΠΊΠ°Π»Π°.

ΠΡΠΎ Π½Π΅ΠΎΠ±Ρ ΠΎΠ΄ΠΈΠΌΠΎ Π΄Π»Ρ ΡΠΎΠ³ΠΎ, ΡΡΠΎΠ±Ρ ΠΎΠ½ Π½Π΅ Π²ΡΠ³Π»ΡΠ΄Π΅Π» ΡΠ»ΠΈΡΠΊΠΎΠΌ ΡΠΆ Π³ΡΠΎΠΌΠΎΠ·Π΄ΠΊΠΎ. ΠΠ»Π΅ΠΌΠ΅Π½ΡΡ ΠΌΠ΅Π±Π΅Π»ΠΈ Π»ΡΡΡΠ΅ Π²ΡΠ±ΠΈΡΠ°ΡΡ Π»Π΅Π³ΠΊΠΈΠ΅.

Π‘ΡΠΈΠ»ΠΈΡΡΠΈΡΠ΅ΡΠΊΠΈΠΌ ΡΠ΅ΡΠ΅Π½ΠΈΠ΅ΠΌ Π² Π΄Π°Π½Π½ΠΎΠΌ ΡΠ»ΡΡΠ°Π΅ ΠΎΠΊΠ°ΠΆΠ΅ΡΡΡ ΠΌΠΈΠ½ΠΈΠΌΠ°Π»ΠΈΠ·ΠΌ. ΠΠΎΠ½ΠΈΡΠΎΠ²Π°Π½ΠΈΠ΅ Π½Π΅Π±ΠΎΠ»ΡΡΠΎΠ³ΠΎ ΠΏΠ»Π°Π½Π° ΡΠΏΠ°Π»ΡΠ½ΠΈ Π»ΡΡΡΠ΅ ΠΏΠΎΡΡΠ΅Π΄ΡΡΠ²ΠΎΠΌ ΡΠ²Π΅ΡΠ° ΠΈ ΡΠ°ΠΊΡΡΡΡ.

Π Π²ΠΎΡ ΠΎΡ ΡΠ΅Π³ΠΎ ΡΡΠΎΠΈΡ Π² ΠΎΠ±ΡΠ·Π°ΡΠ΅Π»ΡΠ½ΠΎΠΌ ΠΏΠΎΡΡΠ΄ΠΊΠ΅ ΠΎΡΠΊΠ°Π·Π°ΡΡΡΡ, ΡΠ°ΠΊ ΡΡΠΎ ΠΎΡ ΠΏΠΎΡΠΎΠ»ΠΊΠΎΠ² ΡΠ°Π·Π»ΠΈΡΠ½ΠΎΠ³ΠΎ ΡΡΠΎΠ²Π½Ρ, ΡΠΎΠ·Π΄Π°Π½Π½ΠΎΠ³ΠΎ ΠΈΠ· Π³ΠΈΠΏΡΠΎΠΊΠ°ΡΡΠΎΠ½Π°.

Π€ΠΎΡΠΎ ΠΈΠ΄Π΅ΠΉ ΠΏΠ»Π°Π½ΠΈΡΠΎΠ²ΠΊΠΈ Ρ ΡΡΡΠ΅Π²ΠΊΠΈ








































topdizajn.ru
ΠΠ»Π°Π½ΠΈΡΠΎΠ²ΠΊΠ° Ρ ΡΡΡΠ΅Π²ΠΊΠΈ: 80 ΡΠΎΡΠΎ Π»ΡΡΡΠΈΡ ΠΏΡΠΎΠ΅ΠΊΡΠΎΠ² ΠΈ ΠΎΡΠΎΠ±Π΅Π½Π½ΠΎΡΡΠΈ ΡΠ°Π±ΠΎΡ
ΠΡΠΈ ΠΏΡΠΈΠΎΠ±ΡΠ΅ΡΠ΅Π½ΠΈΠΈ Π΄Π°Π½Π½ΠΎΠΉ Π½Π΅Π΄Π²ΠΈΠΆΠΈΠΌΠΎΡΡΠΈ Π½Π΅ΠΎΠ±Ρ ΠΎΠ΄ΠΈΠΌΠΎ ΡΠ΄Π΅Π»ΠΈΡΡ ΠΏΡΠΈΡΡΠ°Π»ΡΠ½ΠΎΠ΅ ΠΈ ΠΎΡΠΎΠ±ΠΎΠ΅ Π²Π½ΠΈΠΌΠ°Π½ΠΈΠ΅ ΠΏΠ»Π°Π½ΠΈΡΠΎΠ²ΠΊΠ΅ ΠΏΠΎΠΌΠ΅ΡΠ΅Π½ΠΈΡ. ΠΠ΄Π½Π°ΠΊΠΎ, Π³Π»Π°Π²Π½ΡΠΌ ΠΎΠ±ΡΠ°Π·ΠΎΠΌ Π½Π΅ΠΎΠ±Ρ ΠΎΠ΄ΠΈΠΌΠΎ Π΄Π΅ΡΠ°Π»ΡΠ½ΠΎ ΠΎΡΠΌΠΎΡΡΠ΅ΡΡ ΡΠΏΠ°Π»ΡΠ½Ρ. ΠΠ΅Π»ΠΎ Π² ΡΠΎΠΌ, ΡΡΠΎ Π·Π°ΡΠ°ΡΡΡΡ ΠΏΡΠΎΠ΅ΠΊΡΠΈΡΠΎΠ²ΠΊΠ° ΠΈ ΡΠ°ΡΠΏΠΎΠ»ΠΎΠΆΠ΅Π½ΠΈΠ΅ ΡΠΏΠ°Π»ΡΠ½ΠΈ Π² ΡΠ°ΠΊΠΈΡ ΠΊΠ²Π°ΡΡΠΈΡΠ°Ρ Π±ΡΠ»ΠΈ Π½Π΅Π΄Π°Π»Π΅ΠΊΠΎ ΠΎΡ Π²Ρ ΠΎΠ΄Π½ΠΎΠΉ Π΄Π²Π΅ΡΠΈ, Π° ΡΡΠΎ ΠΏΡΠΈΠ²ΠΎΠ΄ΠΈΡ ΠΊ ΠΎΠΏΡΠ΅Π΄Π΅Π»Π΅Π½Π½ΠΎΠΌΡ Π΄ΠΈΡΠΊΠΎΠΌΡΠΎΡΡΡ.
ΠΡΠΈ ΡΡΠΎΠΌ, ΠΌΠΎΠΆΠ½ΠΎ ΡΠ»ΡΡΠ°ΡΡ ΠΏΠΎΡΡΠΎΡΠΎΠ½Π½ΠΈΠ΅ Π·Π²ΡΠΊΠΈ, ΠΊΠΎΡΠΎΡΡΠ΅ ΠΌΠΎΠ³ΡΡ Π΄ΠΎΠ½ΠΎΡΠΈΡΡΡΡ Ρ Π»Π΅ΡΡΠ½ΠΈΡΠ½ΠΎΠΉ ΠΏΠ»ΠΎΡΠ°Π΄ΠΊΠΈ, ΡΠ°ΠΊ ΠΊΠ°ΠΊ Π·Π²ΡΠΊΠΎΠΈΠ·ΠΎΠ»ΡΡΠΈΡ ΡΠ°ΠΊΠΈΡ ΡΡΡΠΎΠ΅Π½ΠΈΠΉ ΠΏΡΠ°ΠΊΡΠΈΡΠ΅ΡΠΊΠΈ ΠΎΡΡΡΡΡΡΠ²ΡΠ΅Ρ, Π° ΡΡΠΎ ΠΌΠΎΠΆΠ΅Ρ Π΄ΠΎΡΡΠ°Π²Π»ΡΡΡ Π½Π΅ΠΊΠΎΡΠΎΡΡΠ΅ Π½Π΅ΡΠ΄ΠΎΠ±ΡΡΠ²Π° ΠΈ Π΄ΠΈΡΠΊΠΎΠΌΡΠΎΡΡ.

ΠΠΎΡΡΠΎΠΌΡ, ΡΡΠΎ Π±Ρ ΠΈΠ·Π±Π΅ΠΆΠ°ΡΡ ΠΏΡΠΎΠ±Π»Π΅ΠΌ ΠΏΠΎΠ΄ΠΎΠ±Π½ΠΎΠ³ΠΎ ΡΠΎΠ΄Π° Π½Π°ΡΠ° ΡΡΠ°ΡΡΡ ΠΏΠΎΠΌΠΎΠΆΠ΅Ρ Π²Π°ΠΌ ΡΠ΅ΡΠΈΡΡ ΠΈΡ . Π’Π°ΠΊΠΆΠ΅ Π² Π΄Π°Π½Π½ΠΎΠΉ ΡΡΠ°ΡΡΠ΅ ΠΌΠΎΠΆΠ½ΠΎ Π½Π°ΠΉΡΠΈ ΠΌΠ½ΠΎΠ³ΠΎ ΡΠ½ΠΈΠΊΠ°Π»ΡΠ½ΡΡ ΠΈ ΠΊΡΠ°ΡΠΎΡΠ½ΡΡ ΡΠΎΡΠΎ ΠΏΠ»Π°Π½ΠΈΡΠΎΠ²ΠΊΠΈ Ρ ΡΡΡΠ΅Π²ΠΊΠΈ. ΠΡΠΎΠΌΠ΅ ΡΡΠΎΠ³ΠΎ Π·Π΄Π΅ΡΡ ΠΌΠΎΠΆΠ½ΠΎ Π½Π°ΠΉΡΠΈ ΠΏΠΎΠ»Π΅Π·Π½ΡΠ΅ ΠΈ Π½Π΅ΠΎΠ±Ρ ΠΎΠ΄ΠΈΠΌΡΠ΅ ΠΏΡΠ°ΠΊΡΠΈΡΠ΅ΡΠΊΠΈΠ΅ ΡΠΎΠ²Π΅ΡΡ, Π° ΡΠ°ΠΊΠΆΠ΅ Π²Π°ΠΆΠ½ΡΠ΅ ΡΠ΅ΠΊΠΎΠΌΠ΅Π½Π΄Π°ΡΠΈΠΈ.
ΠΡΠ°ΡΠΊΠΎΠ΅ ΡΠΎΠ΄Π΅ΡΠΆΠΈΠΌΠΎΠ΅ ΠΎΠ±Π·ΠΎΡΠ°:
ΠΠ»Π°Π½ΠΈΡΠΎΠ²ΠΊΠ° ΠΎΠ΄Π½ΠΎΠΊΠΎΠΌΠ½Π°ΡΠ½ΠΎΠΉ ΠΊΠ²Π°ΡΡΠΈΡΡ Π² Ρ ΡΡΡΡΠ²ΠΊΠ΅
ΠΠ΅Π·ΡΡΠ»ΠΎΠ²Π½ΠΎ, ΠΆΠΈΠ»ΡΠ΅ Π²ΡΠΎΡΠΎΠΉ ΠΏΠΎΠ»ΠΎΠ²ΠΈΠ½Ρ ΠΏΡΠΎΡΠ»ΠΎΠ³ΠΎ ΡΡΠΎΠ»Π΅ΡΠΈΡ, ΡΠ°ΠΊ Π½Π°Π·ΡΠ²Π°Π΅ΠΌΡΠ΅ Ρ ΡΡΡΠ΅Π²ΠΊΠΈ, ΠΊΠ°ΠΊ ΠΏΡΠ°Π²ΠΈΠ»ΠΎ, ΠΈΠΌΠ΅Π»ΠΈ ΠΌΠ°Π»Π΅Π½ΡΠΊΠΈΠ΅ Π³Π°Π±Π°ΡΠΈΡΠ½ΡΠ΅ ΡΠ°Π·ΠΌΠ΅ΡΡ. ΠΡΠΈ ΡΡΠΎΠΌ, Π² ΠΏΠΎΠΌΠ΅ΡΠ΅Π½ΠΈΡΡ ΠΏΠΎΠ΄ΠΎΠ±Π½ΠΎΠ³ΠΎ ΡΠΈΠΏΠ° ΠΊΡΡ Π½ΠΈ ΠΌΠ°Π»Π΅Π½ΡΠΊΠΈΠ΅ ΠΈ ΡΠ΅ΡΠ½ΡΠ΅ ΠΊΠΎΠΌΠ½Π°ΡΡ, ΡΠΌΠ΅ΠΆΠ½ΡΠΉ ΡΠ°Π½ΡΠ·Π΅Π», Π° Π² Π΄ΠΎΠΏΠΎΠ»Π½Π΅Π½ΠΈΠ΅ ΠΊ ΡΠ°ΠΊΠΎΠΌΡ Π½Π°Π±ΠΎΡΡ Π΅ΡΠ΅ ΠΈ Π²Π΅ΡΡΠΌΠ° Π½Π΅ Π²ΡΡΠΎΠΊΠΈΠ΅ ΠΏΠΎΡΠΎΠ»ΠΊΠΈ, Π½Π΅ Π±ΠΎΠ»Π΅Π΅, ΡΠ΅ΠΌ 2,50 ΠΌΠ΅ΡΡΠΎΠ².

ΠΠ°Π·Π°Π»ΠΎΡΡ Π±Ρ, ΡΡΠΎ Π½Π΅Π΄Π²ΠΈΠΆΠΈΠΌΠΎΡΡΡ ΠΏΠΎΠ΄ΠΎΠ±Π½ΠΎΠ³ΠΎ ΡΠΎΠ΄Π° ΠΈΠΌΠ΅Π΅Ρ ΡΠΎΠ»ΡΠΊΠΎ ΠΎΠ΄Π½ΠΈ ΡΠ²Π½ΡΠ΅ Π½Π΅Π΄ΠΎΡΡΠ°ΡΠΊΠΈ Π΄Π° Π²ΠΎΠ·ΠΌΠΎΠΆΠ½ΠΎ ΡΡΠΎ ΡΠ°ΠΊ, Π½ΠΎ Π½Π΅ΡΠΌΠΎΡΡΡ Π½Π° Π²ΡΠ΅ Π²ΡΡΠ΅ΠΏΠ΅ΡΠ΅ΡΠΈΡΠ»Π΅Π½Π½ΡΠ΅ Π½ΡΠ°Π½ΡΡ, ΡΡΠΎ Π²ΡΠ΅ ΠΌΠΎΠΆΠ½ΠΎ ΡΠ΄Π΅Π»Π°ΡΡ Π² Π΄ΠΎΡΡΠΎΠΈΠ½ΡΡΠ²Π°.
ΠΡΠΈ ΠΏΠΎΠΌΠΎΡΠΈ Π²Π°ΡΠ΅ΠΉ ΡΠ°Π½ΡΠ°Π·ΠΈΠΈ ΠΈ Π²ΠΎΠΎΠ±ΡΠ°ΠΆΠ΅Π½ΠΈΡ ΠΌΠΎΠΆΠ½ΠΎ Π² ΠΊΠΎΡΠ½Π΅ ΠΏΡΠ΅ΠΎΠ±ΡΠ°Π·ΠΈΡΡ ΡΡΠ°ΡΡΡ Ρ ΡΡΡΠ΅Π²ΠΊΡ Π΄ΠΎ Π½Π΅ΡΠ·Π½Π°Π²Π°Π΅ΠΌΠΎΡΡΠΈ.
ΠΡΠ°ΠΊ, Π΄Π»Ρ Π½Π°ΡΠ°Π»Π° ΡΠ°ΡΡΠΌΠΎΡΡΠΈΠΌ Π²Π°ΡΠΈΠ°Π½Ρ Ρ ΠΎΠ΄Π½ΠΎΠΊΠΎΠΌΠ½Π°ΡΠ½ΠΎΠΉ Ρ ΡΡΡΠ΅Π²ΠΊΠΎΠΉ
ΠΠ»Ρ ΠΏΠΎΠ΄ΠΎΠ±Π½ΠΎΠ³ΠΎ ΡΠΈΠΏΠ° ΠΊΠ²Π°ΡΡΠΈΡΡ Ρ Π°ΡΠ°ΠΊΡΠ΅ΡΠ½Π° ΠΎΠ΄Π½Π° Π²Π°ΠΆΠ½Π°Ρ ΠΎΡΠΎΠ±Π΅Π½Π½ΠΎΡΡΡ. ΠΠ΅Π»ΠΎ Π² ΡΠΎΠΌ, ΡΡΠΎ ΡΠΎΠ·Π΄Π°ΡΡ ΠΎΠ΄Π½Ρ ΡΠΎΠ»ΡΠΊΠΎ ΡΠΏΠ°Π»ΡΠ½Ρ Π½Π΅ ΠΏΡΠ΅Π΄ΡΡΠ°Π²Π»ΡΠ΅ΡΡΡ Π²ΠΎΠ·ΠΌΠΎΠΆΠ½ΡΠΌ, ΠΏΠΎΡΡΠΎΠΌΡ ΠΊΠΎΠΌΠ½Π°ΡΠ° Π±ΡΠ΄Π΅Ρ ΡΠ½ΠΈΠ²Π΅ΡΡΠ°Π»ΡΠ½ΠΎΠΉ, ΠΈ ΠΎΠ½Π° Π±ΡΠ΄Π΅Ρ ΠΈΠΌΠ΅ΡΡ Π³ΠΎΡΡΠΈΠ½ΡΡ, ΠΏΡΠΈΡ ΠΎΠΆΡΡ, Π»ΠΈΡΠ½ΡΠΉ ΠΊΠ°Π±ΠΈΠ½Π΅Ρ, ΡΠΏΠ°Π»ΡΠ½Ρ. Π ΠΏΠΎ ΠΌΠ΅ΡΠ΅ Π½Π΅ΠΎΠ±Ρ ΠΎΠ΄ΠΈΠΌΠΎΡΡΠΈ ΠΌΠΎΠΆΠ½ΠΎ ΡΠ΄Π΅Π»Π°ΡΡ Π΅ΡΠ΅ ΠΈ Π΄Π΅ΡΡΠΊΡΡ ΠΊΠΎΠΌΠ½Π°ΡΡ.

ΠΡΠΈ ΡΡΠΎΠΌ Π² ΠΊΠΎΠΌΠ½Π°ΡΠ΅ Π΄ΠΎΠ»ΠΆΠ½ΠΎ Π±ΡΡΡ Π²ΡΠ΅ ΡΠ΅ΡΠΊΠΎ ΠΈ ΠΌΠ°ΠΊΡΠΈΠΌΠ°Π»ΡΠ½ΠΎ, ΠΊΠΎΠΌΠΏΠ°ΠΊΡΠ½ΠΎ, ΡΠ΄ΠΎΠ±Π½ΠΎ ΡΠ°ΡΡΡΠ°Π²Π»Π΅Π½ΠΎ Π½Π° ΡΠ²ΠΎΠΈΡ ΠΌΠ΅ΡΡΠ°Ρ , Π½Π΅ Π΄ΠΎΠ»ΠΆΠ½ΠΎ Π±ΡΡΡ Π½ΠΈΡΠ΅Π³ΠΎ Π»ΠΈΡΠ½Π΅Π³ΠΎ. ΠΠΎ Π²ΠΎΠ·ΠΌΠΎΠΆΠ½ΠΎΡΡΠΈ ΡΡΡΠ°Π½ΠΎΠ²ΠΈΡΠ΅ Π² ΠΊΠΎΠΌΠ½Π°ΡΡ ΠΊΡΠΎΠ²Π°ΡΡ-ΡΡΠ°Π½ΡΡΠΎΡΠΌΠ΅Ρ, ΡΡΠΎ Π²Π΅ΡΡΠΌΠ° ΠΏΡΠ°ΠΊΡΠΈΡΠ½ΠΎ ΠΈ ΡΠ΄ΠΎΠ±Π½ΠΎ. ΠΡΠΎΡ ΠΏΡΠ΅Π΄ΠΌΠ΅Ρ ΠΈΠ½ΡΠ΅ΡΡΠ΅ΡΠ° ΡΠΏΠΎΡΠΎΠ±Π΅Π½ ΡΡΠΊΠΎΠ½ΠΎΠΌΠΈΡΡ Π·Π½Π°ΡΠΈΡΠ΅Π»ΡΠ½ΡΡ ΠΏΠ»ΠΎΡΠ°Π΄Ρ Π² ΠΏΠΎΠΌΠ΅ΡΠ΅Π½ΠΈΠΈ.

Π’Π°ΠΊΠΆΠ΅ ΡΠ΅ΠΊΠΎΠΌΠ΅Π½Π΄ΡΠ΅ΡΡΡ Π½Π°Π»ΠΈΡΠΈΠ΅ Π² ΡΠ°ΠΊΠΎΠΉ ΠΊΠΎΠΌΠ½Π°ΡΠ΅ ΡΠ½ΠΈΠ²Π΅ΡΡΠ°Π»ΡΠ½ΡΡ ΡΡΠΎΠ»ΠΎΠ² Ρ Π²ΡΠ΄Π²ΠΈΠΆΠ½ΠΎΠΉ ΠΊΠΎΠ½ΡΡΡΡΠΊΡΠΈΠ΅ΠΉ, ΠΊΠΎΡΠΎΡΠ°Ρ ΠΏΠΎ ΠΌΠ΅ΡΠ΅ Π½Π΅ΠΎΠ±Ρ ΠΎΠ΄ΠΈΠΌΠΎΡΡΠΈ ΠΌΠΎΠΆΠ΅Ρ ΡΠ²Π΅Π»ΠΈΡΠΈΡΡ ΡΡΠΎΠ», ΡΡΠΎ ΠΎΡΠ΅Π½Ρ ΡΠ΄ΠΎΠ±Π½ΠΎ ΠΏΡΠΈ ΠΏΡΠΈΠ΅ΠΌΠ΅ Π³ΠΎΡΡΠ΅ΠΉ Π±ΠΎΠ»Π΅Π΅ ΡΠ΅ΡΡΡΠ΅Ρ ΡΠ΅Π»ΠΎΠ²Π΅ΠΊ. ΠΡΠ΅ ΡΡΠΎ ΡΠ²Π»ΡΠ΅ΡΡΡ ΠΎΡΠ½ΠΎΠ²Π½ΠΎΠΉ ΡΠΎΡΡΠ°Π²Π»ΡΡΡΠ΅ΠΉ ΠΎΠ΄Π½ΠΎΠΊΠΎΠΌΠ½Π°ΡΠ½ΠΎΠΉ Ρ ΡΡΡΠ΅Π²ΠΊΠΈ.
Π ΠΏΠΎΠΌΠ΅ΡΠ΅Π½ΠΈΡΡ ΠΏΠΎΠ΄ΠΎΠ±Π½ΠΎΠ³ΠΎ ΡΠΈΠΏΠ° Π½Π°Π±Π»ΡΠ΄Π°Π΅ΡΡΡ Π½Π΅Ρ Π²Π°ΡΠΊΠ° ΡΠ²ΠΎΠ±ΠΎΠ΄Π½ΠΎΠ³ΠΎ ΠΏΡΠΎΡΡΡΠ°Π½ΡΡΠ²Π°, ΠΏΠΎΡΡΠΎΠΌΡ ΠΎΡΠ΅Π½Ρ Π²Π°ΠΆΠ½ΠΎ ΡΠ°Π·ΡΠ°Π±ΠΎΡΠ°ΡΡ Π²Π°ΡΠΈΠ°Π½ΡΡ ΠΏΠ»Π°Π½ΠΈΡΠΎΠ²ΠΊΠΈ. ΠΠ½ΠΎΠ³ΠΈΠ΅ Π΄ΠΈΠ·Π°ΠΉΠ½Π΅ΡΡ ΡΠ΅ΡΠ°ΡΡ ΡΡΡ Π·Π°Π΄Π°ΡΡ ΠΏΡΠΈ ΠΏΠΎΠΌΠΎΡΠΈ ΡΠ°ΡΡΠΈΡΠ΅Π½ΠΈΡ Π΄ΡΡΠ³ΠΈΡ ΠΊΠΎΠΌΠ½Π°Ρ, Π½Π°ΠΏΡΠΈΠΌΠ΅Ρ ΠΊΠΎΡΠΈΠ΄ΠΎΡΠ°, ΡΡΠΎ ΠΏΠΎΠ·Π²ΠΎΠ»ΠΈΡ Π½Π΅Π·Π½Π°ΡΠΈΡΠ΅Π»ΡΠ½ΠΎ ΡΠ²Π΅Π»ΠΈΡΠΈΡΡ ΠΆΠΈΠ»ΡΡ ΠΏΠ»ΠΎΡΠ°Π΄Ρ Π² ΠΏΠΎΠΌΠ΅ΡΠ΅Π½ΠΈΠΈ.

Π Π²ΠΎΡ Π΅ΡΠ»ΠΈ ΠΎΡΠ΅Π½Ρ ΡΠ΅ΡΡΠ΅Π·Π½ΠΎ Π·Π°Π½ΡΡΡΡΡ Π±Π°Π»ΠΊΠΎΠ½ΠΎΠΌ, Π΅ΡΠ»ΠΈ Π΅Π³ΠΎ Ρ ΠΎΡΠΎΡΠΎ ΠΎΡΡΠ΅ΠΊΠ»ΠΈΡΡ ΡΠΎΠ²ΡΠ΅ΠΌΠ΅Π½Π½ΡΠΌΠΈ ΠΎΠΊΠΎΠ½Π½ΡΠΌΠΈ ΡΠ°ΠΌΠ°ΠΌΠΈ, Π° ΡΠ°ΠΊ ΠΆΠ΅ Π΅Π³ΠΎ Ρ ΠΎΡΠΎΡΠΎ ΡΡΠ΅ΠΏΠ»ΠΈΡΡ, ΡΠΎ ΠΌΠΎΠΆΠ½ΠΎ ΠΏΠΎΠ»ΡΡΠΈΡΡ Π²ΠΏΠΎΠ»Π½Π΅ ΡΠ΄ΠΎΠ±Π½ΠΎΠ΅ ΠΈ ΠΊΠΎΠΌΡΠΎΡΡΠ½ΠΎΠ΅ ΠΌΠ΅ΡΡΠΎ Π΄Π»Ρ ΠΎΡΠ΄ΡΡ Π°. ΠΡΠΈ ΠΆΠ΅Π»Π°Π½ΠΈΠΈ ΡΠ°ΠΌ ΠΌΠΎΠΆΠ½ΠΎ ΡΡΡΠ°Π½ΠΎΠ²ΠΈΡΡ Π½Π΅Π±ΠΎΠ»ΡΡΠΎΠ΅ ΠΊΡΠ΅ΡΠ»ΠΎ-ΠΊΡΠΎΠ²Π°ΡΡ, Π½Π° ΠΊΠΎΡΠΎΡΠΎΠΌ ΠΌΠΎΠΆΠ½ΠΎ Ρ ΠΎΡΠΎΡΠΎ ΠΎΡΠ΄ΠΎΡ Π½ΡΡΡ.
ΠΠ»Π°Π½ΠΈΡΠΎΠ²ΠΊΠ° Π΄Π²ΡΡ ΠΊΠΎΠΌΠ½Π°ΡΠ½ΠΎΠΉ ΠΊΠ²Π°ΡΡΠΈΡΡ Π² Ρ ΡΡΡΡΠ²ΠΊΠ°Ρ
ΠΠ»Π°Π΄Π΅Π»ΡΡΠ°ΠΌ Π΄Π°Π½Π½ΠΎΠΉ Π½Π΅Π΄Π²ΠΈΠΆΠΈΠΌΠΎΡΡΠΈ Π² ΠΎΠΏΡΠ΅Π΄Π΅Π»Π΅Π½Π½ΠΎΠΉ ΡΡΠ΅ΠΏΠ΅Π½ΠΈ Π·Π½Π°ΡΠΈΡΠ΅Π»ΡΠ½ΠΎ ΠΏΠΎΠ²Π΅Π·Π»ΠΎ Π² ΡΠ°Π·ΠΌΠ΅ΡΠ°Ρ , ΡΠ°ΠΊ ΠΊΠ°ΠΊ Π² ΡΠ°ΠΊΠΈΡ ΠΊΠ²Π°ΡΡΠΈΡΠ°Ρ Π΅ΡΡΡ ΠΊΠΎΠΌΠ½Π°ΡΠ°, ΠΊΠΎΡΠΎΡΠ°Ρ ΡΠΏΠΎΡΠΎΠ±Π½Π° Π½Π°Π·ΡΠ²Π°ΡΡΡΡ ΡΠΏΠ°Π»ΡΠ½Π΅ΠΉ. Π’Π°ΠΊ ΠΆΠ΅ ΠΏΡΠΈ ΠΆΠ΅Π»Π°Π½ΠΈΠΈ ΠΈ Π½Π°Π»ΠΈΡΠΈΠΈ Π΄Π΅Π½Π΅Π³, ΠΌΠΎΠΆΠ½ΠΎ ΡΠ²Π΅Π»ΠΈΡΠΈΡΡ ΠΈ ΠΏΠ»ΠΎΡΠ°Π΄Ρ Π±Π°Π»ΠΊΠΎΠ½Π°.

ΠΡΠΈ ΡΡΠΎΠΌ ΡΠ°ΠΊΠΎΠ΅ ΡΠ΅ΡΠ΅Π½ΠΈΠ΅ Π½Π΅ΠΎΠ±Ρ ΠΎΠ΄ΠΈΠΌΠΎ ΡΠΎΠ³Π»Π°ΡΠΎΠ²Π°ΡΡ Ρ ΡΠΎΠΎΡΠ²Π΅ΡΡΡΠ²ΡΡΡΠΈΠΌΠΈ ΠΈΠ½ΡΡΠ°Π½ΡΠΈΡΠΌΠΈ. Π ΠΊΠΎΠ½Π΅ΡΠ½ΠΎΠΌ ΠΈΡΠΎΠ³Π΅ Π±Π°Π»ΠΊΠΎΠ½ ΠΌΠΎΠΆΠ΅Ρ Π±ΡΡΡ ΠΏΠ΅ΡΠ΅ΠΎΠ±ΠΎΡΡΠ΄ΠΎΠ²Π°Π½ ΠΏΠΎΠ΄ Π»ΠΈΡΠ½ΡΠΉ ΠΊΠ°Π±ΠΈΠ½Π΅Ρ ΠΈΠ»ΠΈ Π½Π΅Π±ΠΎΠ»ΡΡΡΡ ΡΡΡΠ½ΡΡ ΠΊΠΎΠΌΠ½Π°ΡΡ ΠΎΡΠ΄ΡΡ Π°.
ΠΠ΅ΠΌΠ°Π»ΠΎΠ²Π°ΠΆΠ½ΠΎΠ΅ Π·Π½Π°ΡΠ΅Π½ΠΈΠ΅ ΠΏΡΠΈ ΠΏΠ»Π°Π½ΠΈΡΠΎΠ²ΠΊΠ΅ Π΄Π²ΡΡ ΠΊΠΎΠΌΠ½Π°ΡΠ½ΠΎΠΉ Ρ ΡΡΡΡΠ²ΠΊΠ΅ ΠΈΠΌΠ΅Π΅Ρ ΡΠ°ΡΠΏΠΎΠ»ΠΎΠΆΠ΅Π½ΠΈΠ΅ ΠΊΡΠΎΠ²Π°ΡΠΈ ΠΈ Π΅Π΅ ΠΎΠΊΡΡΠΆΠ°ΡΡΠ΅Π΅ ΠΎΠ±ΡΡΡΡΠΎΠΉΡΡΠ²ΠΎ Π½Π΅ΠΎΠ±Ρ ΠΎΠ΄ΠΈΠΌΡΠΌΠΈ Π΄Π»Ρ ΠΆΠΈΠ·Π½ΠΈ Π±ΡΡΠΎΠ²ΡΠΌΠΈ ΠΏΡΠ΅Π΄ΠΌΠ΅ΡΠ°ΠΌΠΈ.

ΠΠΎΡΠΊΠΎΠ»ΡΠΊΡ ΠΊΡΠΎΠ²Π°ΡΡ ΠΈΠΌΠ΅Π΅Ρ Π²Π΅ΡΡΠΌΠ° Π²Π½ΡΡΠΈΡΠ΅Π»ΡΠ½ΡΠ΅ Π³Π°Π±Π°ΡΠΈΡΡ, ΡΠΎ ΡΠΎΠΎΡΠ²Π΅ΡΡΡΠ²Π΅Π½Π½ΠΎ ΠΎΠ½Π° Π½Π° ΡΠ΅ΡΠ²Π΅ΡΡΡ Π·Π°Π½ΠΈΠΌΠ°Π΅Ρ ΠΌΠ΅ΡΡΠΎ Π² ΡΠΏΠ°Π»ΡΠ½Π΅, ΠΏΡΠΈ ΡΡΠΎΠΌ Π½Π΅ΠΎΠ±Ρ ΠΎΠ΄ΠΈΠΌΠΎ Π΅ΡΠ΅ ΠΈ ΠΎΠ±ΡΡΡΡΠΎΠΈΡΡ ΠΊΠΎΠΌΠ½Π°ΡΡ, Π½Π°ΠΏΡΠΈΠΌΠ΅Ρ, ΡΡΡΠ°Π½ΠΎΠ²ΠΈΡΡ ΡΠΊΠ°Ρ-ΠΊΡΠΏΠ΅, Π° ΡΠ°ΠΊΠΆΠ΅ ΠΏΠΎΡΡΠ°Π²ΠΈΡΡ ΠΌΠ°Π»Π΅Π½ΡΠΊΡΡ ΠΏΡΠΈΠΊΡΠΎΠ²Π°ΡΠ½ΡΡ ΡΡΠΌΠ±ΠΎΡΠΊΡ. ΠΠ΄Π½Π°ΠΊΠΎ Π²Π°ΠΆΠ½ΠΎ ΡΠ»Π΅Π΄ΠΈΡΡ Π·Π° ΡΠ΅ΠΌ, ΡΡΠΎ Π±Ρ Π² ΠΊΠΎΠΌΠ½Π°ΡΠ΅ Π±ΡΠ»ΠΎ ΡΠ΄ΠΎΠ±Π½ΠΎ ΠΈ ΡΠ²ΠΎΠ±ΠΎΠ΄Π½ΠΎ ΠΏΠ΅ΡΠ΅ΠΌΠ΅ΡΠ°ΡΡΡΡ.

ΠΠ»Π°Π½ΠΈΡΠΎΠ²ΠΊΠ° ΡΡΡΡ ΠΊΠΎΠΌΠ½Π°ΡΠ½ΠΎΠΉ ΠΊΠ²Π°ΡΡΠΈΡΡ Π² Ρ ΡΡΡΡΠ²ΠΊΠ°Ρ
ΠΠ»Π°Π²Π½Π°Ρ ΠΎΡΠΎΠ±Π΅Π½Π½ΠΎΡΡΡ ΠΎΠ±ΡΡΡΡΠΎΠΉΡΡΠ²Π° Π΄Π°Π½Π½ΠΎΠΉ ΠΊΠΎΠΌΠ½Π°ΡΡ Π·Π°ΠΊΠ»ΡΡΠ°Π΅ΡΡΡ Π² ΡΠΎΠΌ, ΡΡΠΎ ΡΠ°ΠΊΠΈΠ΅ ΠΏΠΎΠΌΠ΅ΡΠ΅Π½ΠΈΡ ΠΈΠΌΠ΅ΡΡ Π½Π΅Π±ΠΎΠ»ΡΡΠΎΠ΅ ΠΌΠ°Π»ΠΎΠ³Π°Π±Π°ΡΠΈΡΠ½ΠΎΠ΅ ΡΡΡΠΎΠ΅Π½ΠΈΠ΅ ΠΊΠ°ΠΊ ΠΊΠ»Π°Π΄ΠΎΠ²ΠΊΠ°. ΠΡΠΈ ΠΆΠ΅Π»Π°Π½ΠΈΠΈ Π΅Π΅ ΠΌΠΎΠΆΠ½ΠΎ Ρ Π»Π΅Π³ΠΊΠΎΡΡΡΡ ΠΏΠ΅ΡΠ΅Π΄Π΅Π»Π°ΡΡ Π² ΠΊΡΠ°ΡΠΈΠ²ΡΠΉ ΠΈ ΡΠΎΠ²ΡΠ΅ΠΌΠ΅Π½Π½ΡΠΉ ΡΠΊΠ°Ρ Π΄Π»Ρ Ρ ΡΠ°Π½Π΅Π½ΠΈΡ ΠΎΠ΄Π΅ΠΆΠ΄Ρ Π»ΠΈΠ±ΠΎ Π΄Π»Ρ Π΄ΡΡΠ³ΠΈΡ ΠΏΡΠ΅Π΄ΠΌΠ΅ΡΠΎΠ², ΠΊΠΎΡΠΎΡΡΠ΅ Π½Π΅ΠΎΠ±Ρ ΠΎΠ΄ΠΈΠΌΠΎ ΡΠΊΡΡΡΡ ΠΈΠ· Π²ΠΈΠ΄Π°.

Π‘Π»ΠΎΠΆΠ½ΠΎΡΡΡ ΠΏΠ»Π°Π½ΠΈΡΠΎΠ²ΠΊΠΈ ΡΡΠ΅Ρ ΠΊΠΎΠΌΠ½Π°ΡΠ½ΠΎΠΉ ΠΊΠ²Π°ΡΡΠΈΡΡ Π·Π°ΠΊΠ»ΡΡΠ°Π΅ΡΡΡ Π² ΡΠΎΠΌ, ΡΡΠΎ Π½Π΅ΠΎΠ±Ρ ΠΎΠ΄ΠΈΠΌΠΎ ΡΠ΅ΡΠΊΠΎ ΠΈ ΠΏΡΠ°Π²ΠΈΠ»ΡΠ½ΠΎ ΠΎΡΠΎΡΠΌΠΈΡΡ Π²ΡΠ΅ ΡΡΠΈ ΠΊΠΎΠΌΠ½Π°ΡΡ ΡΠΎΠ»ΡΠΊΠΎ ΡΠ°ΠΌΡΠΌ Π½Π΅ΠΎΠ±Ρ ΠΎΠ΄ΠΈΠΌΡΠΌ, Π½Π΅ ΠΏΠ΅ΡΠ΅Π³ΡΡΠΆΠ°Ρ ΠΈΠ½ΡΠ΅ΡΡΠ΅Ρ Π»ΠΈΡΠ½ΠΈΠΌΠΈ Π΄Π΅ΠΊΠΎΡΠ°ΡΠΈΠ²Π½ΡΠΌΠΈ ΡΠ»Π΅ΠΌΠ΅Π½ΡΠ°ΠΌΠΈ ΠΈ ΠΏΡΠ΅Π΄ΠΌΠ΅ΡΠ°ΠΌΠΈ ΠΎΠ±ΠΈΡ ΠΎΠ΄Π°.
ΠΠ΅ ΡΠ»Π΅Π΄ΡΠ΅Ρ Π·Π°Π³ΡΠΎΠΌΠΎΠΆΠ΄Π°ΡΡ ΠΊΠΎΠΌΠ½Π°ΡΡ Π±ΠΎΠ»ΡΡΠΎΠΉ ΠΊΡΡΠΏΠ½ΠΎΠ³Π°Π±Π°ΡΠΈΡΠ½ΠΎΠΉ ΠΌΠ΅Π±Π΅Π»ΡΡ, ΠΌΠ΅Π±Π΅Π»Ρ Π΄ΠΎΠ»ΠΆΠ½Π° Π±ΡΡΡ ΠΊΠΎΠΌΠΏΠ°ΠΊΡΠ½ΠΎΠΉ ΠΈ ΡΠ½ΠΈΠ²Π΅ΡΡΠ°Π»ΡΠ½ΠΎΠΉ.
ΠΠ±ΡΠΈΠ΅ ΡΠ΅ΠΊΠΎΠΌΠ΅Π½Π΄Π°ΡΠΈΠΈ
ΠΡΠ»ΠΈ Π²Π°ΠΌ Π²ΡΠ΅-ΡΠ°ΠΊΠΈ ΠΏΠΎ Π΄ΡΡΠ΅ ΠΊΡΡΠΏΠ½ΠΎΠ³Π°Π±Π°ΡΠΈΡΠ½Π°Ρ ΠΌΠ΅Π±Π΅Π»Ρ, Π΅Π΅ ΠΌΠΎΠΆΠ½ΠΎ ΡΡΡΠ°Π½ΠΎΠ²ΠΈΡΡ ΠΏΡΠΈ ΡΡΠ»ΠΎΠ²ΠΈΠΈ, ΡΡΠΎ ΠΎΠ½Π° Π±ΡΠ΄Π΅Ρ ΠΈΠΌΠ΅ΡΡ Π±ΠΎΠ»ΡΡΠΈΠ΅ Π·Π΅ΡΠΊΠ°Π»ΡΠ½ΡΠ΅ Π΄Π²Π΅ΡΠΈ. Π Π΄Π°Π½Π½ΠΎΠΌ ΡΠ»ΡΡΠ°Π΅ Π·Π΅ΡΠΊΠ°Π»ΡΠ½ΡΠ΅ Π΄Π²Π΅ΡΠΈ ΡΠΏΠΎΡΠΎΠ±Π½Ρ ΡΠΎΠ·Π΄Π°ΡΡ Π²ΠΈΠ·ΡΠ°Π»ΡΠ½ΡΠΉ Π·ΡΠΈΡΠ΅Π»ΡΠ½ΡΠΉ ΡΡΡΠ΅ΠΊΡ ΡΠ²Π΅Π»ΠΈΡΠ΅Π½Π½ΠΎΠΉ ΠΊΠΎΠΌΠ½Π°ΡΡ.

Π‘Π»Π΅Π΄ΡΠ΅Ρ ΡΠ°ΠΊΠΆΠ΅ ΠΎΡΠΌΠ΅ΡΠΈΡΡ, ΡΡΠΎ ΡΠΎΠ²ΡΠ΅ΠΌΠ΅Π½Π½Π°Ρ ΠΏΠ»Π°Π½ΠΈΡΠΎΠ²ΠΊΠ° Π½Π΅ Π²ΡΠ΅Π³Π΄Π° ΠΌΠΎΠΆΠ΅Ρ Π±ΡΡΡ Π²ΠΎ Π±Π»Π°Π³ΠΎ. ΠΡΠ»ΠΈ Π²Π°ΠΌ, Π½Π°ΠΏΡΠΈΠΌΠ΅Ρ, Π·Π°Ρ ΠΎΡΠ΅ΡΡΡ Π²Π΄ΡΡΠ³ ΡΡΡΠ°Π½ΠΎΠ²ΠΈΡΡ ΠΌΠ½ΠΎΠ³ΠΎΡΡΠΎΠ²Π½Π΅Π²ΡΠΉ ΠΏΠΎΡΠΎΠ»ΠΎΠΊ ΠΈΠ· Π³ΠΈΠΏΡΠΎΠΊΠ°ΡΡΠΎΠ½Π°, Ρ ΡΠΎΠ²ΡΠ΅ΠΌΠ΅Π½Π½ΠΎΠΉ ΠΏΠΎΠ΄ΡΠ²Π΅ΡΠΊΠΎΠΉ ΡΡΠΎΠ³ΠΎ Π΄Π΅Π»Π°ΡΡ Π½Π΅ ΡΠ΅ΠΊΠΎΠΌΠ΅Π½Π΄ΡΠ΅ΡΡΡ.
ΠΠ΅Π»ΠΎ Π² ΡΠΎΠΌ, ΡΡΠΎ ΡΠ°ΠΌΠΈ ΠΏΠΎ ΡΠ΅Π±Π΅ ΠΏΠΎΡΠΎΠ»ΠΊΠΈ Π² Ρ ΡΡΡΠ΅Π²ΠΊΠ°Ρ ΠΈΠΌΠ΅ΡΡ Π½ΠΈΠ·ΠΊΡΡ Π²ΡΡΠΎΡΡ, Π° ΠΏΡΠΈ ΡΡΡΠ°Π½ΠΎΠ²ΠΊΠ΅ ΡΠ°ΠΊΠΎΠ³ΠΎ ΠΏΠΎΡΠΎΠ»ΠΊΠ° ΡΡΠΎ Π΅ΡΠ΅ ΡΠΌΠ΅Π½ΡΡΠΈΡ Π΅Π³ΠΎ Π²ΡΡΠΎΡΡ. ΠΠΎΡΡΠΎΠΌΡ Π»ΡΠ±ΠΎΠ΅ ΡΠ΅ΡΠ΅Π½ΠΈΠ΅ Π½Π΅ΠΎΠ±Ρ ΠΎΠ΄ΠΈΠΌΠΎ ΡΠ΅ΡΠΊΠΎ ΠΈ ΠΏΡΠ°Π²ΠΈΠ»ΡΠ½ΠΎ ΠΎΠ±Π΄ΡΠΌΠ°ΡΡ, Π° ΡΠΎΠ»ΡΠΊΠΎ Π·Π°ΡΠ΅ΠΌ ΠΏΡΠΈΡΡΡΠΏΠ°ΡΡ ΠΊ ΡΠ°Π±ΠΎΡΠ΅.
Π€ΠΎΡΠΎ ΠΏΠ»Π°Π½ΠΈΡΠΎΠ²ΠΊΠΈ Ρ ΡΡΡΠ΅Π²ΠΊΠΈ




































dizainmetrov.ru