Чертеж козырька над дверью: Козырек над крыльцом (100 фото)
Козырек над крыльцом (100 фото)
Установка козырька над крыльцом поможет подчеркнуть стиль всего здания и защитит от плохой погоды. Предлагаем вам информацию, которая поможет выбрать наиболее подходящий козырек.

Содержимое обзора:
Функциональность козырька
Над входной дверью можно устанавливать различные виды козырьков. Для их выполнения используются различные материалы, формы и элементы декора. Козырек выполняет не только декоративную функцию. Давайте определим, для чего он необходим.

Прежде всего он позволяет при выходе из дома в плохую погоду спокойно закрыть дверь, спрятать ключи и открыть зонтик.

Кроме этого при входе в дом он также защитит от осадков.

Козырек прикрывает входную дверь, поэтому она прослужит гораздо дольше.
Виды козырьков
От вида козырька зависит способ его установки.

Первый вид — монолитные козырьки. Они выполняются одним целым со стеной.

Плюсом такого козырька является его прочность и долговечность. Но у него есть и недостатки: при желании козырек невозможно будет перенести в другое место. К тому же с его качественной установкой способны справится только специалисты.

Более популярным видом, устанавливаемым во многих домах, являются модульные козырьки. Для их монтажа отдельные детали соединяют друг с другом. Благодаря этому их довольно просто устанавливать. При необходимости такие козырьки легко ремонтировать.

Довольно просто выполнить монтаж модульного козырька без привлечения специалистов.

Цветовые решения готовых козырьков довольно разнообразны. Это позволяет подобрать для вашего дома самый оптимальный вариант.

Для установки козырьков над входной дверью применяются различные виды креплений. Это стоит помнить, выполняя выбор необходимого варианта козырька.

Навесные козырьки, которые кроме этого имеют опоры, являются очень крепкими и долговечными. Их закрепляют на стене, а опоры используют для лучшей устойчивости конструкции.

Для того, чтобы навесные козырьки, установленные без опор, хорошо держались, при их изготовлении используют легкие материалы. Очень стильно на новых зданиях смотрятся козырьки из стекла.

Используемые материалы
Козырьки отличает не только вид конструкции и способ монтажа, но и материалы, которые использовались для их изготовления. Каждый из них имеет свои преимущества и недостатки.

Для того, чтобы определиться с выбором наиболее подходящего в каждом конкретном случае козырька, предлагаем рассмотреть все возможные варианты:
Из профнастила
Для козырька над крыльцом этот материал используют очень часто. Привлекательной является довольно небольшая цена. Такой козырек очень просто установить. Он не требует особого ухода.

Профнастил служит долгие годы и является очень практичным материалом. У этого материала имеется только один недостаток — он не слишком прочен.

Именно поэтому стоит выбирать наиболее толстые листы, а также применять специальное защитное покрытие, которое будет увеличивать прочность материала.

Из поликарбоната
Этот материал отличает превосходная гибкость, поэтому используя поликарбонатные листы можно создавать козырьки различной формы.

В строительных магазинах предлагают большое разнообразие цветов. Это дает возможность установить козырек, который будет идеально подходить к дизайну здания.

Козырек из поликарбоната является довольно прочным и долговечным. К тому же данный материал является огнеупорным.

Солнечные лучи негативно воздействуют на данное покрытие, делая его мутным.

Для устранения этого недостатка перед установкой рекомендуют покрыть поверхность козырька специальным защитным средством.

Из металлочерепицы
В идеале ее выбирают того же цвета, что и крыша здания. Такой козырек имеет длительный срок эксплуатации. Уход за ним минимальный.

Недостатками козырька из металлочерепицы являются сильный нагрев от воздействия солнечных лучей и плохая шумоизоляция.

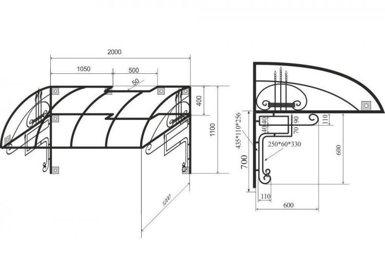
Кованые козырьки
Благодаря своему изумительно привлекательному внешнему виду они очень популярны на протяжении многих лет.
Недостатком такого варианта является высокая стоимость. Кроме того он подходит не ко всем типам зданий.

Если идея кованого козырька кажется очень привлекательной, но дорогой, то можно сочетать кованые элементы с металлочерепицей или поликарбонатом.

Из дерева
Этот материал привлекает большое количество архитекторов. Деревянные козырьки восхитительно вписываются в общий облик дома. Все разнообразие вариантов просто невозможно перечислить

Такой козырек можно покрасить в любой цвет, просто покрыть лаком, выполнить резьбу или выжигание по дереву. Для защиты от гниения стоит воспользоваться защитной смесью.

Из дерева можно выполнить конструкции разнообразных форм, но все же стоит отдавать предпочтение односкатным или двухскатным козырькам на даче.

Из стекла
Для них используют специальное закаленное стекло. Оно является довольно легким и отлично вписывается в современный дизайн здания.

Такой вариант выглядит необычайно красиво. Обычное стекло в данном случае не подходит, поскольку оно не долговечно.

Закаленное стекло, наоборот, довольно крепкое. Однако оно требует особого ухода, что может вызывать определенные трудности. Кроме того его стоимость значительно выше других предложенных вариантов.

Самостоятельная установка козырька
Изначально может показаться, что этот процесс довольно сложный. Однако это вовсе не так. Для монтажа козырька не требуется особых строительных навыков.

Прежде всего необходимо определить размеры, затем — выполнить чертеж планируемого козырька. Далее требуется рассчитать количество всех необходимых для установки материалов.

Стоит учитывать некоторые нюансы:
- Рекомендуется делать козырек в 1,5 раз шире, чем входная дверь;
- Длина должна быть хотя бы на метр больше, чем ширина двери;
- Прямые козырьки лучше не делать. Угол наклона скатов должен быть больше 20, чтобы снег мог соскальзывать с козырька, а не накапливался на нем;
- Козырек не должен препятствовать полному открытию двери.

Можно определить размеры козырька, отталкиваясь от ширины крылечка. Стоит делать козырек так, чтобы по сторонам он выступал на 30 см. Для выбора высоты стоит учитывать общий дизайн дома и угол наклона.

Определившись с размерами и приобретя все необходимые материалы, из металла или дерева делают подкосы, балку, скаты и стропила.

Обязательно, чтобы последние два элемента имели одинаковую длину. Деревянный каркас соединяют саморезами, а металлический козырек — сваркой.

После соединения деталей, балку крепят к стене с помощью нержавеющих саморезов, а подкосы — с помощью анкеров. На стропилах закрепляют обрешетку, на которую впоследствии укладывают выбранное покрытие.

На скате закрепляют желоб или водосточную трубу.

Готовый козырек над крыльцом возможно устанавливать даже на многослойном покрытии. Для этого потребуется воспользоваться башмаками-нержавейками. Обязательно все стыки тщательно герметизировать, чтобы предотвратить протекание влаги через них.

Фото козырьков над крыльцом поражают разнообразием дизайна, цветов и использованных материалов. Они являются прекрасным и функциональным украшением дома.

Выбранный вариант козырька, при желании, довольно просто установить самостоятельно, даже не имея особых строительных навыков.
Фото козырька над крыльцом


































Просмотров: 1 116
Как сделать козырек над входной дверью своими руками: пошаговая инструкция
Навес над входом в строение, балконом или калиткой выполняет двойную роль. Он защищает проем от атмосферных факторов и является частью декора здания (или участка), даже считается чуть ли не его ключевой деталью. Но независимо от того, какую из функций собственник считает приоритетной, обязательно для дверного козырька придется выбирать наиболее приемлемые материалы и схему.

Существует множество инженерных решений, так как никакими нормативными документами (СНиП, ГОСТ) этот элемент фасада дома не регламентируется. А это позволяет не только составить свой, оригинальный чертеж, но и оптимизировать расходы. Определяясь, как сделать навес над дверью, чтобы он обладал максимальным функционалом и в то же время был украшением дома, следует придерживаться несложного алгоритма.
Составление схемы
Сложность изготовления и монтажа во многом зависит от вида козырька. Именно конфигурация его покрытия определяет, какие материалы для него целесообразнее использовать. Выбирая приемлемую форму и размеры, следует учитывать ряд моментов.
- Особенности климата. В первую очередь, насколько снежными бывают зимы в регионе. Наст (оледенение) создает значительную нагрузку, следовательно, устанавливая козырек, нужно обратить внимание на прочность конструкции.
- Расположение дома. Укрывают ли его другие объекты (лесополоса, смежные строения и так далее), имеет значение в плане ветровой нагрузки. Если роза ветров неблагоприятно скажется на устойчивости навеса, то следует выбирать схемы с низкой парусностью, а оригинальность, «эксклюзивность» козырька в этом случае должна отойти на второй план.
- Ремонтопригодность. К сожалению, мало кто задумывается над тем, что любая конструкция, расположенная вне строения, подвергается максимальному износу. Прежде чем сделать козырек над входной дверью, следует оценить, насколько сложно его будет приводить в порядок (реставрировать или заниматься ремонтом).
- Назначение навеса. Если требуется защитить от ненастья лишь дверь, то достаточно небольшого козырька. Более габаритные модели могут укрыть террасу, превратив ее в уютную беседку на входе; встречаются чертежи конструкций, которые тянутся от частного дома до калитки (гаража), образуя своеобразную крытую аллею.

Размеры (в мм). При их определении стоит ориентироваться на следующие типовые рекомендации. По глубине козырек должен быть больше площадки не менее чем на 300, то есть полностью закрывать сверху нижнюю ступень. То же относится и к ширине; чтобы исключить попадание осадков на участок перед входом в дом сбоку, навес должен выступать за периметр косяка с каждой стороны на те же 300. Если дверь стандартных размеров, то ширина козырька варьируется в пределах 1250 – 1750, в зависимости от ее модели и специфики оформления входа.

Вид каркаса. Сделать козырек можно по одной из четырех схем: консольной подвесной, балочной, опорной или в виде своеобразной пристройки, смонтированной на отдельно стоящих столбах (независимая конструкция).

Форма навеса:
- односкатный вариант – самый простой козырек над дверью, изготовление которого не требует профессионализма;
- двускатные схемы – повышенная прочность навеса обеспечена. Если крыша дома имеет такой же вид, целесообразно остановиться на этой модификации козырька;
- арочные конструкции – преимущества в том, что они удачно вписываются в любую архитектуру и выдерживают значительные нагрузки. Снег на таком навесе не накапливается, а потому можно выбрать более «легкие» материалы;
- сферические, куполообразные козырьки – плюс в том, что они характеризуются хорошей обтекаемостью. При неблагоприятной розе ветров – одно из лучших решений;
- «пагоды» – их отличает изящество и оригинальность. Но с учетом интенсивности осадков в наших широтах и того, что они станут скапливаться на навесе, стоит лишний раз подумать, нужен ли такой козырек.
Иные варианты – не более чем модификации базовых конструкций.

Выбор материалов
Мнения специалистов по данному пункту разделяются. Одни считают, что следует ориентироваться на фасад дома, другие – на его кровлю, третьи – на оформление и форму крыльца. Но есть очевидные вещи, которые нельзя не учитывать.
Опорная конструкция
- Металл. Подходит для всех типов строений, обеспечивает максимальную надежность конструкции и пригоден к обшивке любыми материалами. Уход сложности не представляет; если нет антикоррозийного покрытия или сталь не категории «нержавейка», то достаточно регулярного окрашивания элементов.

- Древесина. Как правило, из нее изготовляются козырьки над дверью бревенчатого, брусового или каркасного дома, обшитого деревянной вагонкой. Нуждается в систематической пропитке и обработке спец/средствами. Если крыльцо на освещаемой стороне здания, о долговечности и речи нет – скручивание, растрескивание неминуемы.

- Кирпич. Для массивных козырьков и добротных домов – неплохое решение, особенно если стойки отделать декоративной плиткой. Но сложность возведения повышает и конечную стоимость работ. Повысить прочность можно закладкой в опоры металлического прутка, что является плюсом данного решения.

Кровля
Навес над входной дверью покрыть самостоятельно несложно следующими материалами.
- Поликарбонат. Преимуществ множество – небольшой вес, огромная палитра оттенков, выбор по размерам листов и толщине. Если имеет значение светозащищенность, то стоит ориентироваться на сотовую модификацию продукции.
- Профлист, оцинковка. Дешево, привлекательно, надежно. К тому же работать с листовым железом довольно просто – гнуть, кроить, обрабатывать.
- Шифер. Существенный минус – большая нагрузка. Придется обустраивать прочную опору. Да и вешний вид такого козырька сложно назвать презентабельным.
- Металлочерепица, мягкая кровля. И они имеют недостаток – придется монтировать сплошную обрешетку. А это, кроме дополнительной нагрузки, и повышенный расход материалов.
Из толстого стекла получаются великолепные входные козырьки. Но этот вариант – не для самостоятельного изготовления. А традиционные покрытия из рубероида, толи, пленки подходят разве только что для дачного домика, и то, не каждого.

Установка каркаса
Монтаж ведется в зависимости от выбранной схемы козырька. Но общий порядок действий однотипный.
- Крепление стоек. Для металлических каркасов лучше выбирать профильную трубу, со стороной порядка 40 мм. К ней легко крепить любой настил болтами или саморезами. Если конструкция требует усиления, несложно смонтировать и обрешетку. Но фиксация опорных элементов на стене – только анкерами.
После установки каркасной части навеса производится ее зачистка (при необходимости) и обработка растворителем. Перед окрашиванием металл козырька покрывается слоем грунтовки.
- Обшивка навеса. Специфика крепления листовых материалов в том, что обязательно под головки крепежа, даже если они и большие, подкладываются шайбы. Затяжка метизов делается не до конца, чтобы избежать прогибов в профиле. Накрывая козырек над дверью своими руками поликарбонатом, стоит использовать специальные крепежные детали, в комплект которых входят термошайбы. Иначе температурная деформация листов приведет к их быстрому разрушению.

Различных идей и схем в интернете достаточно. Учитывая, что каких-либо жестких требований к козырькам на входе в здания нет, любой чертеж можно взять за основу и разработать собственный, индивидуальный проект. Главное – чтобы навес хорошо вписывался в дизайн дома, соответствовал назначению и был легко реализуем своими руками, без помощи профессионалов. Ну а кто не надеется на себя, сможет заказать навес в специализированной фирме.
Как сделать козырек над крыльцом
Входная дверь в частном доме/на даче подвергается агрессивному воздействию окружающей среды. Козырек отчасти защитит дверь от разрушения. Существует немало вариантов монтажа этих конструкций. Из этой статьи вы узнаете, как сделать козырек над крыльцом так, чтобы он был красивым и надежным украшением дома, исправно выполняющим свои основные функции.
Предназначение

Основное функциональное назначение козырьков:
- Защищать входную дверь от осадков и палящего солнца.
- Обеспечить комфорт домовладельцу. Например, открывать замок приятней под навесом, особенно в непогоду.
- Украшать экстерьер дома.
Разновидности

Чаще всего владельцы частных домов делают козырьки под заказ. Если у вас тоже нет времени для изготовления этой конструкции, то вы можете поступить так же. Но при необходимости сэкономить семейный бюджет, сделать козырек можно и своими руками. Как бы там ни было, чтобы козырек у вас был качественным и соответствующим вашим запросам, предлагаем вам ознакомиться с разновидностями козырьков и их особенностями.
Из поликарбоната

Козырьки из поликарбоната сегодня пользуются большим спросом среди потребителей. Это и не удивительно, ведь этот материал обладает рядом преимуществ:
- Долговечный.
- Прочный.
- Практичный.
- Продается в широкой цветовой гамме.
Хотя есть материалы для покрытия козырька и подешевле, но эксплуатационные характеристики поликарбоната полностью оправдывают его стоимость. Ниже будет приведена инструкция по изготовлению арочного козырька из этого материала.
Из металла

Для работы с металлом нужен сварочный аппарат и некоторые навыки в работе с ним. Хотя металл дешевле поликарбоната, но работать с ним на порядок сложнее. Обойти сварочные работы можно, используя механические стандартные соединения металлических элементов при помощи болтов и гаек.
Среди преимуществ металла стоит отметить:
- Надежность.
- Доступность по цене.
- Долговечность (при условии, что он будет своевременно обрабатываться антикоррозийными средствами).
Именно из-за необходимости в регулярном уходе за металлом, многие потребители отказываются от изготовления козырьков из него.
Чтобы установить поликарбонатный козырек вам все равно придется сделать под него металлическое основание. В этом случае преимуществ у поликарбоната все-таки больше, так как каркас под него занимает до 30% от всей конструкции, ввиду легкости кровельного материала. А если покрыть конструкцию козырьком из металла, то ухаживать придется и за каркасом, и за крышей.
Из пластика

Пластиковые плиты, пригодные для устройства козырька дороже, чем ПВХ, используемый для внутренних работ. Поэтому и стоимость ПВХ кровли не так мала, как хотелось бы. Внешне такие плиты напоминают поликарбонат.
Пластик можно установить на каркас любой формы. Вы можете купить белые плиты и наклеить на них пленку желаемого цвета или приобрести их уже оклеенными.
Преимущества материала:
- Легкий вес.
- Долговечность.
- Надежность.
- Простота монтажа.
Из профнастила

Сегодня профнастил пользуется большим спросом среди потребителей. По продажам можно сказать, что он занял на рынке лидирующие позиции. Его используют для изготовления заборов и кровли. Из недостатков материала стоит отметить неустойчивость к механическим повреждениям. Даже самую легкую вмятину уже будет заметно на профнастиле.
Если вы решите приобрести для обустройства козырька именно этот вариант покрытия, то купите профнастил более высокого качества и более толстый. Работать с ним гораздо проще, чем с металлочерепицей и металлом.
Из металлочерепицы

Если вы решили сделать козырек из металлочерепицы, то помните, ее цвет и структура должны соответствовать кровельному материалу крыши. Разница в цвете и текстуре, хотя бы самая незначительная, будет очень заметна.
Делать козырек из металлочерепицы лучше всего на этапе накрытия дома или другой постройки, на входной двери к которой вы решили сделать козырек. В таком случае у вас получится сделать козырек из остатков металлочерепицы от кровли крыши.
В качестве кровельного материала для козырька может также выступать битумная черепица либо другой похожий кровельный материал, даже рубероид отечественного производителя.
Из дерева

Здесь подразумевается изготовление деревянного каркаса. В качестве кровельного материала может сгодиться тот же поликарбонат, металлочерепица, листовой металл, шифер и т. д. Для домов старого типа такой козырек подходит лучше всего. Кроме того, в числе построек, для экстерьера которых подойдет деревянная конструкция козырька – дома из сруба, реставрированные мазанки и сооружения, выполненные в стиле фахверк.
Из ковки

Лучшим дизайнерским решением станет козырек, каркас которого выполнен из ковки. Он будет служить достойным украшением дома. Однако такая конструкция обойдется вам в копеечку. Кованный козырек можно совмещать с такими кровельными материалами, как поликарбонат, черепица и даже пластик.
Кованный козырек довольно тяжелый, поэтому для того, чтобы он служил действительно долго, нужно его правильно установить.
Ковка подходит практически под любой дизайн, так как она может состоять как из грубых, так и утонченных элементов. Если на приусадебном участке уже есть кованные элементы, то и козырек следует выполнить в одном стиле с ними.
Изготовление односкатного козырька

Для изготовления такой конструкции, вам понадобится перечень материалов:
- Карнизная планка.
- Водосточный желоб.
- Металлические уголки.
- Планка примыкания.
- Труба.
- Бруски.
- Профнастил/гибкая черепица.
- Анкеры, саморезы и шурупы.
Из инструментов вам пригодятся следующие:
- Сварочный аппарат.
- Измерительная рулетка.
- Ножовка по металлу/болгарка.
Перед началом изготовления козырька нужно зарисовать его эскиз. Для строительства вполне конкретного козырька нужно сделать определенные замеры, такие как ширина и длина крыльца. К полученной цифре добавьте еще 60 см. Это и будет ширина вашей конструкции. Для получения длины козырька вам нужно померить расстояние от входной двери до конца крыльца, добавив до этой цифры еще порядка 15–20 см. высота козырька высчитывается в зависимости от архитектуры дома.
Наклон козырька должен составлять около 20º.
С помощью этих данных можно нарисовать эскиз на бумаге или в специальной программе на компьютере в масштабе.
Изготовление каркаса
В соответствии с проектом нарежьте металлические уголки. Длина стропил из уголков равняется высоте ската. Из уголков также нужно сделать подкосы и пристенные балки. Детали каркаса соединяют между собой при помощи сварочного аппарата. Каркас закрепляется над крыльцом.
Зафиксируйте пристенную балку. Делается это при помощи шурупов из нержавейки, а для крепления подкосов используются анкеры. Изготовьте обрешетку из брусков, установив ее на стропила. Если в качестве кровельного материала будет использован профнастил, то между рейками должно быть расстояние равное 30 см. Для гибкой черепицы нужно подготовить сплошную обрешетку. На нее впоследствии будет выложен кровельный материал.
Односкатный козырек
Закрепить гибкую черепицу можно при помощи саморезов. Гибкая черепица укладывается внахлест, а не встык.
Теперь нужно зафиксировать металлическую планку примыкания к верхней части ската. На нижнюю его сторону нужно прикрепить карнизную планку, а затем соединить и установить водосточный желоб и трубу.
Изготовление арочного козырька из поликарбоната

Сделать такую конструкцию не составит труда даже для неопытного в строительстве человеку. Готовый каркас можно приобрести в строительном магазине или соорудить самостоятельно.
Как и в предыдущем случае, перед началом работ по изготовлению арочного козырька, необходимо сделать замеры и нарисовать эскиз.
- Сделайте каркас из трубы квадратного сечения 12–16 мм или алюминиевой трубы. Согните трубу по радиусу арочного козырька. Вам нужно будет изготовить 2 идентичных дуги.
- Соедините дуги прямыми отрезками трубы с обоих концов. Чтобы каркас арочного козырька был более жестким, наварите на него с внутренней стороны соединительную балку.
- Затем к задней дуге приварите навесы. С их помощью будет осуществлено крепление козырька к стене дома.
- Теперь зачистите каркас от ржавчины и окалины. Прогрунтуйте его и покрасьте.
- Установите арочную конструкцию над крыльцом при помощи шурупов.
- Закрепите саморезами поликарбонат.
Ферма для арочного козырька
Если вы изготавливаете козырек над крыльцом одноэтажного дома, то сделайте его так, чтобы края свесов выступали над крыльцом на 20–30 см. Таким образом, будет исключена возможность попадания воды/снега на место крепления козырька к стене, что продлит его эксплуатационный срок.
Изготовление двускатной конструкции

Двускатный козырек сделать сложнее. Но он предоставляет наилучшую защиту от косого дождя. Да и при необходимости его очистки от снега сделать это будет легче. Двускатный козырек жестче своих аналогов, поэтому отличается высоким уровнем ветрозащиты.
Для начала нужно сделать замеры и выполнить эскиз. Потом следует провести расчет размеров треугольных кронштейнов и обрешетки.
Конечный результат изготовления козырька полностью зависит от точности проведения замеров. Поэтому к этому этапу работ нельзя относиться легкомысленно.
Двускатный козырек
- Сделайте 2 кронштейна. Они могут быть металлическими или деревянными. Для этого соедините две перпендикулярные балки между собой и закрепите их подкосом под углом 45–60º.
- Закрепите кронштейны на расстоянии, которое было бы равно ширине козырька. Вертикальные балки получившегося кронштейна приложите к стене, выровняйте по уровню и закрепите при помощи 3–4 шурупов из нержавейки.
- Если козырек должен быть опорным, то изготавливать кронштейны не нужно. Вместо них, нужно установить металлические/деревянные столбы. Выкопайте ямы под столбы на необходимом расстоянии друг от друга. В яме сделайте песчаную подушку, утрамбуйте ее. Чтобы песок дал усадку, слегка намочите его водой. Установите столб и залейте бетоном. Верхние концы столбов соединяются несущими балками.
- Стропила изготовьте из деревянных брусков/обрезной доски. Если козырек небольшой, то вам будет достаточно двух пар стропил. Скрепите между собой стропильные ноги ригелями. Затем закрепите стропила на верхних балках кронштейнов и осуществите установку конькового бруса.
- Сделайте обрешетку. Ее можно изготовить из доски/бруса/фанеры. Выбор материала осуществляется по желанию.
- Установите крюки для установки водосточных желобов.
- Уложите кровельный материал в соответствии с инструкцией от производителя. Теперь нужно установить примыкающую к стене планку и ветровые планки к передней части двускатного козырька. Они, среди прочего, будут защищать конструкцию от попадания влаги и снега.
- Теперь нужно установить водосточный желоб и карнизную планку. Помните, что нижний край планки должен быть опущен внутрь желоба. Закрепите водосточную трубу.
Перед установкой деревянных элементов конструкции, каждый из них нужно обработать антисептиками, которые значительно увеличат их эксплуатационный срок.
Итак, в зависимости от вида козырька и ваших умений в работе с перечисленным в статье инструментами, вы сможете сделать козырек самостоятельно. Если, прочитав инструкции, вы поняли, что эти работы вам не по зубам, то лучше закажите готовый козырек. Есть вопросы по теме? Задавайте их нашему эксперту. Опытом можно делиться в комментариях к статье.
Видео
В предоставленном видео, вы сможете наглядно узнать о тонкостях изготовления козырька над крыльцом:
;
Фото
В этой фотогалереи, вы увидите немало интересных идей, по изготовлению козырька:
Деревянный козырек
Металлический
На балконе
Угловой над крыльцом
Над входом
Оригинальной формы
С элементами ковки
Красивый козырек
Небольшого размера
Декоративный
Схемы
Если вы решили самостоятельно сделать козырек, то схемы, изложенные ниже, помогут вам сконструировать собственную модель козырька:
Чертеж козырька
Чертеж арочной формы
Схема арочного козырька
Деревянный навес
Двухскатный
Конструкция козырька
Козырек с опорами
Схема металлического козырька
Навес над крыльцом
Плоский козырек
Простая конструкция
Как сделать козырек над крыльцом (навес) из металла своими руками
Неотъемлемым элементом каждого входа является козырек. Без него входная дверь в частный дом выглядит незавершенной. Кроме того, у него есть важное практическое предназначение, которое заключается в защитной функции. В статье будут обсуждаться разновидности конструкций, а также вариант для самостоятельного изготовления козырька над крыльцом.

Требования к козырькам
Козырек должен быть не только практичным, но и безопасным, поэтому есть ряд требований, которому должна соответствовать конструкция козырька:
- герметичность;
- прочность;
- привлекательность;
- достаточная ширина и длина;
- соответствие общему настроению здания.

Одной из основных функций козырька является защитная. При этом речь идет как о жильцах и гостях, которые будут входить в дом, так и о самой входной двери. Хороший козырек является герметичным, т. е. через щели в его настиле не протекает дождевая или талая вода. Это продлевает срок службы материала, из которого изготовлена дверь. Кроме того, козырек отбрасывает тень на крыльцо, что препятствует быстрому выгоранию лакокрасочного покрытия, которое нанесено на наличники и дверь.

Конструкция козырька должны быть достаточно прочной. Это означает, что она без особых сложностей должна выдерживать как собственный вес, так и ветровую нагрузку, которая в некоторых случаях может в несколько раз превосходить вес конструкции козырька. Кроме того, зимой при обильных снегопадах часть осадков будет задерживаться на козырьке. Его прочности должно хватить и на вес снежного покрова.

Козырек не является модулем, который делается, чтобы просто было. Он должен быть привлекательным и задавать общее настроение. В то же время конструкция козырька не должна противоречить экстерьеру здания. Это выражается как в линиях каркаса, так и в расцветке. Ширина козырька должна быть такой, чтобы вылет с каждой стороны от двери составлял минимум 50 см. Только в этом случае можно говорить о достаточной защитной функции.
Разновидности конструкций
Классификация козырьков чаще всего производится по способу оформления кровельного настила, а названия соответствуют тому, как называется кровля схожей конструкции. Из этого следует, что они могут быть:
- односкатными;
- двускатными;
- многоскатными;
- арочными;
- куполообразными;
- вогнутыми.
Первый вариант требует наименьшего количества материала для изготовления и имеет небольшой вес. Собрать такую конструкцию можно без особых усилий своими руками. Она представляет собой одну плоскость, которая закрепляется к стене под требуемым уклоном. У такой конструкции есть определенные ограничения по наклону, поэтому при большой длине на козырьке может скапливаться снег. Козырек с двумя скатами напоминает треугольник. Для изготовления такой конструкции потребуется в два раза больше материала, чем для односкатного. При этом угол каждого ската можно увеличить. Это даст возможность ускорить отвод осадков сверху.

Многоскатные козырьки смотрятся отлично в том случае, если устанавливаются на крыльцо дома, который имеет вальмовую или другую кровлю сложной формы. Изготовить такой козырек довольно сложно, поэтому потребуется составление качественного и продуманного чертежа, а также помощь специалиста. Арочные козырьки представляют собой полукруглую конструкцию. Ее стоит выбирать в том случае, если в конструкции дома есть округлые формы, с которыми козырек будет сочетаться. В другом случае лучше не рисковать с экспериментами. Это относится и к купольным козырькам. Они в определенной степени схожи с арочными, но имеют дополнительный изгиб в передней части конструкции.
Обратите внимание! Вогнутые конструкции являются разновидностью односкатных козырьков. Их недостатком является плохой отвод осадков, хотя по внешнему виду они могут быть довольно привлекательными.
Кровельный настил

Выбор кровельного настила является важным шагом при проектировании конструкции козырька над входом. Все материалы, которые подходят для этих целей можно разделить на две большие группы:
- полимерные;
- металлические.
Из первой группы чаще всего останавливают свой выбор на сотовом поликарбонате. Это действительно хороший материал, который обладает такими плюсами:
- небольшой вес;
- простота монтажа;
- светопропускающая способность;
- приятный внешний вид;
- простота придания округлой формы;
- разнообразие цветовых решений;
- устойчивость к химическим воздействиям.

Поликарбонат способен частично пропускать свет, что бывает полезным для козырька. Перед покупкой поликарбоната необходимо удостовериться, что он имеет защитную пленку, которая минимизирует воздействие ультрафиолетовых лучей. Если такой пленки не будет, тогда материал быстро рассохнется и потрескается. Из недостатков поликарбоната критическим может быть его хрупкость. Если в местности, где планируется установка козырька не является редкостью град, тогда лучше выбрать другой вид настила, т. к. при первых же осадках поликарбонат будет полностью поврежден.

Из металлических кровельных настилов наиболее распространенными являются профнастил и металлическая черепица. Они имеют схожие свойства, но металлочерепица смотрится привлекательнее. Из положительных качеств этих материалов стоит выделить:
- механическая прочность;
- небольшой вес;
- продолжительный срок службы;
- возможность самостоятельной установки;
- возможность придания округлой формы;
- доступная цена;
- широкий выбор цветовых решений.

По механической прочности металлические настилы превосходят поликарбонат. Их также можно изгибать до определенного радиуса, чтобы получить требуемую форму козырька. Металлочерепица и профнастил более устойчивы к ветровым нагрузкам. Сильный град способен оставить вмятины, но не пробьет металлический лист. Из недостатков материала можно отметить его шумность. Даже маленький дождь будет хорошо барабанить по козырьку.
Самостоятельное изготовление
Любая работа начинается с планирования. Оно поможет правильно рассчитать силы, средства и учесть возможные сложности при достижении цели. Это справедливо и при изготовлении козырька, поэтому первым этапом будет его проектирование.

Проектирование

Чтобы облегчить себе процесс проектирования, лучше предварительно сфотографировать вход. На фотографии легче подобрать требуемые размеры и форму будущей конструкции. Сделать это можно как вручную, так и в графическом редакторе. Во время составления чертежа необходимо учесть несколько моментов:
- ширина конструкции;
- длина выноса конструкции;
- количество опор;
- угол наклона ската.

Выше уже говорилось, что козырек должен быть шире входа на 50 см с каждой стороны, но это правило недействительно, если есть крыльцо с большими размерами. В таком случае необходимо позаботиться, чтобы козырек закрыл крыльцо по бокам. Длина выноса может регулироваться в зависимости от пожеланий. Если козырек будет слишком длинным, тогда просто устанавливаются дополнительные опоры. Количество опор будет зависеть от сложности конструкции и ее веса. Обычно достаточно крепления к стене и двух опор. Угол наклона подбирается таким же образом, как и для кровли, которая есть на доме.

Подготовительные работы
Подготовительный процесс заключается в покупке необходимых материалов и недостающих инструментов. Из материалов понадобится:
- выбранный кровельный настил;
- металлическая профильная труба с размером 50×30 и 40×20 мм;
- крепежный расходник;
- цемент;
- песок.
Из инструмента не обойтись без:
- болгарки;
- шуруповерта;
- перфоратора;
- рулетки;
- маркера;
- сварочного аппарата.
Не стоит забывать о предметах индивидуальной защиты, например, об очках, перчатках и одежде из натуральных волокон.
Монтаж

Первым делом из профильной трубы 40×20 мм необходимо подготовить каркас будущей конструкции. В зависимости от выбранных размеров нарезаются заготовки. Две из них должны соответствовать высоте крыльца, две других должны соответствовать его длине. Размер еще двух заготовок подбирается в процессе. Из этих компонентов должен получиться прямоугольный треугольник. Первым делом между собой попарно привариваются детали, размеры которых известны. Они должны быть расположены под прямым углом.

Добиться этого позволит специальная струбцина или тиски. Проваривать весь шов не следует за один проход, т. к. угол будет нарушен. Лучше выполнить небольшие прихватки, выровнять заготовку, а потом полностью ее проварить. Когда все готово, можно произвести замер длины гипотенузы. Болгаркой вырезается еще два элемента, и они привариваются на свое место. Теперь необходимо объединить треугольники в общую конструкцию козырька. Для этого они соединяются планками по углам. Чтобы увеличить жесткость каркаса козырька у образовавшегося прямоугольника, который будет прилегать к стене, необходимо приварить несколько поперечных планок.

Следующим шагом монтируются металлические элементы под обрешетку, на которую будет закреплен кровельный настил крыльца. По готовности каркаса крыльца его можно устанавливать на стену. Так его будет проще закрепить. В катетах треугольника, который будет прилегать к стене сверлится несколько отверстий. Они должны по диаметру совпадать с диаметром анкера, с помощью которого будет производиться крепление. Каркас крыльца прислоняется на место монтажа и переносится расположение отверстий на стену. Перфоратором сверлятся отверстия в стене.

Теперь можно выполнить зачистку каркаса крыльца. С него необходимо удалить всю ржавчину. Сделать это проще всего шлифовальной машинкой или болгаркой с соответствующей насадкой. После этого выполняется покраска каркаса крыльца. Когда он высохнет, можно выполнить монтаж кровельного материала. Если это будет профнастил или металлочерепица, то крепить их следует кровельными саморезами с резиновыми уплотнителями. Поликарбонат также можно закрепить ими, но в отношении поликарбоната не стоит переусердствовать. Если слишком затянуть саморезы, то они просто раздавят настил. Далее козырек поднимается и фиксируется на своем месте.

После монтажа необходимо герметизировать узел примыкания козырька к стене. Это можно сделать с помощью различных мастик или отрезком кровельного материала. При большом выносе козырька монтируются стойки. Предварительно они должны быть приварены к каркасу. Под них выкапывается две ямы глубиной в 50 см. Часть стоек козырька, которая будет находиться в земле, покрывается битумной мастикой, которая защитит их от ржавления. Стойки опускаются на свое место и пространство вокруг них заливается бетонным раствором. Другой вариант козырька для самостоятельной сборки есть в видео.
Резюме
Как видно, изготовить простейший вариант односкатного козырька не составит проблем даже для неопытного мастера. Главным требованием является наличие навыка работы с различными электроинструментами.
виды, как сделать (75 фото)

Дождь, снег, солнце, капли с крыши – все то, что не очень хочется прочувствовать на себе, стоя на крыльце дома. Именно для этого монтируются специальные козырьки и навесы. А заодно они дополняют фасад и делают экстерьер здания еще более целостным, гармоничным и завершенным. В этой статье мы расскажем, какой материал выбрать и как сделать козырек самостоятельно!
Формы навесов
Форма и размер козырька играют решающую роль при его выборе. Он обязательно должен быть немного шире входа, чтобы спасать от осадков. Глубину рассчитывай по своим пожеланиям, архитектуре дома и размерам крыльца: в среднем, от 0,5 до 2 м.
В зависимости от типа кровли и наличия скатов, козырьки бывают прямыми, наклонными или рельефными. Наклонные – это одно- и двускатные, а к рельефным относятся пирамидальные, арочные, дугообразные и другие необычные модели. Независимо от конфигурации, нужно предусмотреть систему стока, чтобы осадки не скапливались в одном месте.

Материалы для козырька
Качественный козырек над крыльцом – прочный и выдерживает любые неблагоприятные погодные условия. Используется все что угодно: дерево, стекло, металл, поликарбонат, разные виды кровельных покрытий. Если выбираешь тяжелые материалы, обязательно учитывай нагрузку на каркас: например, под керамочерепицу нужны усиленные брусья увеличенного сечения.
Козырьки из поликарбоната
Поликарбонат – прочный и нетребовательный материал с прозрачностью до 86%. Он выносливый, не боится температурных перепадов, коррозии, грибка и гниения. На него не влияет влажность и ультрафиолет, а поцарапать или повредить его почти невозможно.
Поликарбонат бывает сотовым и монолитным – в зависимости от того, какой формы и размеров козырек ты хочешь. Он гибкий и ему можно придавать разные формы для фигурных и рельефных навесов. При этом он не требует усиленного каркаса и не создает дополнительную нагрузку на фасад или фундамент.
Козырек из поликарбоната можно купить готовым или сделать самостоятельно. Основной недостаток материала – его характерный внешний вид. Он может быть не совсем уместен на классических бревенчатых домах, в стилистике кантри, прованса или северных шале.

Козырек из дерева
Дерево – самый экологичный и разнообразный материал, идеально дополняющий такие же деревянные дома. На волне эко-трендов оно используется для изготовления всего: навесов, беседок, веранд. С ним легко работать и обрабатывать, красить, лакировать, украшать резьбой и декорировать.
Разные сорта древесины отличаются прочностью и влагостойкостью, но все они все равно достаточно чувствительны ко внешним воздействиям. За таким козырьком придется регулярно ухаживать, а в холодных и влажных регионах они могут быть нецелесообразны изначально. При правильной подготовке и пропитке древесины козырек проживет 7-10 лет.

Козырьки из стекла
Использование стекла для козырьков – неоднозначное решение, вокруг которого ходит много мифов. Считается, что это слишком хрупкий и не самый практичный материал. Но уже давно производители создают ударопрочное закаленное стекло, которое почти невозможно повредить. А если даже оно и разбивается – оно рассыпается на мелкие безопасные фрагменты.
Главное преимущество стекла – его эстетичный внешний вид, который идеально дополняет современную архитектуру. Можно экспериментировать с тонировкой и декорированием, не бояться ржавчины и гниения. Единственный минус – стекло требует ухода, чтобы на нем не оставались подтеки и разводы после дождя.

Козырьки из металлочерепицы
Металлочерепица – высокопрочный кровельный материал с отличными техническими характеристиками. Он долговечный и неприхотливый, его почти невозможно повредить. У металлочерепицы лучшие антивандальные свойства из популярных кровельных покрытий.
Срок службы такого козырька легко дойдет до 50 лет без специального ухода. И за все это время он не блекнет, не ржавеет и не теряет привлекательный внешний вид. Металлочерепица сочетается с любыми другими строительными материалами, но требует специальной подготовки основания при монтаже.

Козырьки из профнастила
Профнастил или металлопрофиль – это стальные листы холодного проката, покрытые защитным полимерным слоем. Их главные преимущества – низкая цена в сочетании с повышенной механической прочностью и долговечностью. В ассортименте производителей можно отыскать расцветку из широкой и разноплановой палитры.
С профнастилом легко работать, он не требует сложной подготовки и не утяжеляет основание, не нуждается в специальной обработке и уходе. Только учитывай, что лучше всего козырек из профнастила сочетается с идентичной крышей. И во время сильных дождей, града или порывистого ветра стальные листы будут более шумными, чем дерево или поликарбонат.

Кованые козырьки
Кованые металлические козырьки – это декоративный аксессуар, а не настоящая функциональная защита. Они дополняют классические дома и деревенский стиль. Это традиционное сочетание с деревянными конструкциями, которое никогда не выйдет из моды.
Современные технологии ковки позволяют создавать самые интересные и причудливые узоры. Теперь это гораздо доступнее, ведь раньше такую роскошь могли позволить себе только богачи и аристократы. А свой привлекательный внешний вид кованые элементы сохраняют десятилетиями, независимо от морозов, снега, жары или дождя.

Способы крепления козырька к стене
Козырьки крепятся по-разному, в зависимости от веса и конфигурации. Опорные требуют специальных поддерживающих опор – это вариант для больших навесов и тяжелых кровельных материалов, а подвесные крепятся непосредственно на стену. Функциональные навесы защищают от непогоды, а декоративные – завершают художественные композиции при оформлении экстерьера и ландшафта.

Делаем козырек своими руками!
Козырек можно установить даже самостоятельно – тебе не понадобятся сложные профессиональные навыки. Но не забывай о безопасности: важно, чтобы конструкция была максимально крепкой и прочной. Козырек должен легко выдерживать нагрузки от ветра, дождя и снега.
Деревянный козырек над крыльцом своими руками
Для самого простого односкатного козырька тебе понадобится влагостойкая фанера подходящего размера, доска или вагонка и лист оцинкованного железа. Элементарная конструкция – это три поперечных балки на вертикальных стойках, которые можно сделать декоративными.
Сначала нарисуй схему и трафарет угловых фрагментов, после чего перенеси узор на фанеру. Лучше всего повторять детали прямым копированием, чтобы избежать минимальных неточностей в размерах. Вырежи детали и тщательно отшлифуй всю поверхность и края листом наждачки.
Вырежи переднюю планку и для красоты оставь и на ней резные элементы с повторяющимися мотивами. Для жестокости конструкции проложи перпендикулярно отрезки фанеры и установи центральный ригель. Если у тебя очень широкий карниз, можешь сделать больше опорных элементов, но заранее продумай, как установить их над входом.
Обработай дерево защитными составами и водостойким лаком, покрась при желании. Стальной лист станет защитным кровельным покрытием, но можешь заменить его на профнастил. Не забудь отогнуть заднюю часть для защиты примыкания и небольшие желоба на 1-2 см для сбора осадков и талой воды.

Двухскатный козырек своими руками
Двухскатный козырек изготавливается из деревянного бруса и обшивается вагонкой. Тебе понадобятся угловые опорные стойки, на которых и держится конструкция козырька, основание или рама для стропил, каркас и кровельное покрытие. Для него используй металлочерепицу, битумную черепицу или другой материал на твой вкус.
Закрепи на стене над крыльцом вертикальные отрезки бруса – это будет основа для Г-образных стоек. Затем установи горизонтальные балки и прикрепи саморезами подкосы. Постоянно отслеживай уровень, вертикали и горизонтали, чтобы конструкция была ровной.
Для широкого козырька достаточно трех пар стропил для каркаса, но если ты используешь тяжелое покрытие – сделай больше. Под каждый угол вырежи треугольный брусок для устойчивости, чтобы не оставлять зазоров. Ее можно приклеить обычным клеем и уже потом закрепить саморезом все вместе.
Обшей готовые скаты вагонкой или шпунтованной доской – но обязательно легкими. Простели гидроизоляционный слой или проложи плиту ОСБ, а затем переходи к укладке основного кровельного покрытия.

Козырек из поликарбоната своими руками
Выбери поликарбонат: монолитный прочнее, но тяжелее, а сотовый легче, но не такой стойкий. Для навесов, козырьков и подобных конструкций достаточно сотового листа толщиной 8-10 мм. Учти, что расположить лист нужно будет так, чтобы внутренний конденсат мог спокойно стекать вдоль внутренних ребер наружу.
Поликарбонат укладывается вверх защитной пленкой, которая повышает его устойчивость к ультрафиолету. Отверстия под крепежи должны быть чуть больше их диаметра – это тепловые зазоры. Используй под саморезами резиновые шайбы и прокладки, чтобы в соединения не попадала грязь.
При стыковке листов воспользуйся соединительными планками, которые скрывают деформационный шов. Торцы закрой накладками для отвода конденсата или проклей клеевой лентой. Если тебе нужно согнуть поликарбонат в арку – делай это сразу на каркасе перпендикулярно внутренним каналам и с радиусом от 80 см.

Опорный козырек своими руками
Сооружение опорного козырька по началу ничем не отличается от других одно-, двухскатных или арочных – повторяй все шаги до этапа монтажа. Основное отличие в процессе установки: понадобятся вертикальные стойки. С деревянным каркасом используй брус большего сечения, а с металлическим – привари к нему опорные трубы, а потом зашкурь, прогрунтуй и прокрась швы.

Козырек над крыльцом – фото-идеи
Козырек над крыльцом – полезное приобретение для любого дома. Они отличаются формами, материалами и внешним видом, поэтому среди всего многообразия ты легко найдешь вариант для себя. Смотри и вдохновляйся!

Козырек над крыльцом из дерева своими руками: инструкция
Крыльцо и козырек над ним относится к так называемым входным группам – важным элементам многих строений, и не только частных. Эти архитектурные конструкции защищают входной проем от погодных капризов, улучшают внешний вид фасада, дают возможность придать зданию эксклюзивность. Эксплуатационные возможности современных строительных материалов позволяют архитекторам создавать красивые и оригинальные решения. Козырьки можно делать на деревянных и металлических каркасах, оба варианта имеют свои плюсы и минусы. В этой статье остановимся только на одном варианте – каркасе из дерева.

Козырек над крыльцом из дерева своими руками
Содержание статьи
Эксплуатационные характеристики козырьков из дерева
Дерево считается традиционным строительным материалом, его применяют для изготовления различных архитектурных элементов, конструкций, мебели и прочих изделий. Главный недостаток дерева – негативная реакция на высокую влажность, в таких условиях оно быстро поражается гнилью и грибками. В настоящее время существуют довольно эффективные пропитки, составы защищают пиломатериалы не только от негативного влияния атмосферных осадков, но и от возгораний. Но, к сожалению, все пропитки имеют ограниченный срок действия, со временем такая защита становится ненадежной и требует повторной обработки древесины.

Выбор пропитки для дерева
Преимущества
Деревянные каркасы имеют ряд преимуществ, благодаря чему применяются очень широко в частном строительстве.
- Технологичность. Дерево обрабатывается ручными или переносными электрическими инструментами, отдельные элементы просто собираются в единую конструкцию. При условии соблюдения строительных правил, каркас сохраняет первоначальные размеры и конфигурацию длительный период времени.
- Красивый внешний вид. Текстура древесины после специальной финишной обработки считается украшением любой конструкции. Никакие самые технологичные попытки имитации структуры дерева не могут сравниться с нею по разнообразию и внешней привлекательности.

Деревянный козырек, изготовленный опытным мастером, может стать настоящим украшением фасада
- Экологическая безопасность. Весьма условное достоинство. Если деревянный каркас козырька не окрашивать и не пропитывать антисептиками, то он действительно не выделяет в воздух вредных химических соединений. Но как долго прослужат незащищенные конструкции – большой вопрос. Есть еще один нюанс. Пропитанное антисептическими составами и окрашенное дерево нельзя считать экологически чистым.
- Небольшой вес при относительно высоких показателях физической прочности. Чем меньше вес – тем ниже нагрузка на фасадные станы, тем проще их фиксировать к несущим конструкциям.

Деревянные козырьки обычно имеют небольшой вес и могут крепиться к любым видам основания
Недостатки
Как и любой строительный материал, дерево имеет свои недостатки. Их не так много, но они весьма существенны.
- Высокая стоимость. Качественная древесина твердых пород, наиболее устойчивых к неблагоприятным условиям, сейчас стоит очень дорого, да и в небольших населенных пунктах такой пиломатериал не всегда есть в продаже. Что касается дешевой сосны, то ее качество обычно оставляет желать лучшего, и срок службы изделий из нее в разы меньше.

Пиломатериал из лиственницы — не самый дешевый вариант
- Необходимость выполнения периодических ремонтных работ. Как бы тщательно ни защищалась поверхность каркаса козырька, со временем поверхность потеряет первоначальный внешний вид, дерево начнет портиться. Необходимо делать комплекс специальных строительных мероприятий по восстановлению козырька, а для этого требуется время и финансовые затраты.

Периодически деревянный козырек придется ремонтировать, менять отдельные элементы
- Качество изделий во многом зависит от умения мастера. Работа с деревом требует не только знаний, но и большого практического опыта. Почему? Металлический прокат одной марки всегда имеет одни и те же физические параметры. И зимой, и летом, к примеру, у стали марки Ст 3 не меняется прочность, ее обрабатывают на одинаковых режимах. С деревом все намного сложнее. Свойства пиломатериала зависят от огромного количества природных и человеческих факторов. Выбрать оптимальный режим обработки может только опытный плотник, от его профессионализма зависит качество обработки поверхности.

Чтобы изделие радовало своим видом и долговечностью, мастер должен обладать определенными навыками и опытом
Не нужно думать, что изготовить деревянный каркас для козырька над крыльцом легко, хотя работа с деревом под силу и начинающему мастеру. Но если у вас нет никакого опыта, то лучше начинать не со столь заметных архитектурных конструкций фасада дома.
Какие бывают козырьки
При выборе дизайна козырька обыкновенные застройщики принимают во внимание несколько факторов:
- наличие материалов для изготовления каркаса;
- личные навыки обработки дерева или металла, перечень имеющихся инструментов и оборудования;
- общая стоимость козырька.
Только после анализа вышеперечисленных условий начинается обдумывание дизайна. Не всегда можно сделать то, что хочется, надо реально оценивать свои силы и согласовывать их с желаниями.

При выборе конструкции козырька нужно учитывать расход материалов и сложность изготовления
Цены на различные виды строительных досок
Доски строительные
Архитектурные особенности козырьков
Каждый мастер вносит свои изменения в конструкцию каркасов, подбирает материалы, использует те или иные технологии. Но есть несколько общих свойств, эти знания окажут помощь неопытным строителям с выбором конкретного вида.
Таблица. Виды козырьков для крыльца
| Тип козырьков | Краткое описание и особенности |
|---|---|
![]() Односкатные наклонные | Самые простые, при определенных навыках такие конструкции можно полностью сделать всего за один день. Как правило, дополнительных декоративных элементов не имеют. |
![]() Двускатные | Довольно сложные конструкции, но внешний вид существенно украшает фасадную стену здания. Материалы покрытия должны гармонировать с кровельными материалами крыши дома. Часто имеют боковые вертикальные опоры в различных стилях. |
![]() Трехскатные | Встречаются лишь над крыльцами престижных строений, могут изготавливаться опытными плотниками. Низ чаще всего обивается натуральными досками, за счет этого закрываются элементы сложной стропильной системы. |
![]() Арочные | Накрываются поликарбонатными листами, которые придают им современный вид. По устройству простые конструкции, единственная проблема – сложность изготовления арочных несущих элементов. |
В зависимости от способа крепления к фасадным стенам козырьки могут быть подвесными, консольно-опорными, консольно-балочными. На выбор крепления главное влияние оказывает вес и размер конструкции.
Пошаговая инструкция изготовления козырька
В качестве примера мы рассмотрим один из наиболее простых вариантов конструкции. При желании его можно дополнить оригинальными декоративными элементами и немного изменить технологию строительства.
Для изготовления понадобятся хвойные доски 25×100 мм, длина выбирается в зависимости от размеров навеса. Кровля накрывается профилированным листом, внутренняя поверхность декорируется специальным оригинальным ковриком из бамбуковых палочек. Доски надо пропустить на четырехстороннем рейсмусе, снять фаску на острых углах и минимум два раза покрыть устойчивым лаком для наружных работ.

Очень важно правильно подобрать пиломатериал: доски должны быть хорошего качества и сухие
Передний и задний упорный элемент крыши следует предварительно подготовить – вырезать симметричные пазы. Глубина должна отвечать 2/3 ширины досок, а ширина их толщине. В эти прорези будут устанавливаться опорные стропила наклонной крыши.

В досках предварительно вырезают пазы
Цены на популярные модели электролобзиков
Электролобзик
Шаг 1. Соберите вертикальные опоры козырька. Для этого между двумя длинными досками следует прикрутить по два коротких отрезка длиной примерно по 20 см. Длина самих опор должна отвечать высоте конструкции в передней части. На каждую опору требуется по две длинных и две короткие доски. Прикручивайте их саморезами в шахматном порядке с шагом 15 см.

Вертикальные опоры собирают из двух досок и отрезков, расположенных между ними
В нижней части опор короткие отрезки прикручиваются вровень с торцами, в верхней части должна быть ниша 15 см, в нее будет вставляться несущая доска с прорезями. Ее длина равняется ширине козырька.
Шаг 2. Забетонируйте в земле металлические подставки для вертикальных опор. Глубина ямок примерно 50–70 см. Для исключения колебания элементов во время замерзания/размерзания грунтов сделайте песчаную подушку толщиной 15–20 см. Песок должен быть сухим и утрамбованным. Бетон следует готовить в пропорции 1:2:4. На часть цемента добавляйте две части песка и четыре части гравия. Песок должен быть чистым без примеси глины, она очень негативно влияет на конечную прочность бетона.

В местах установки опор бетонируют металлические подставки
Подставки выставляйте по уровню, расстояние между ними должно соответствовать ширине козырька. Подождите минимум неделю, за это время бетон наберет достаточную прочность для продолжения строительных работ.
Шаг 3. Закрепите на подставках вертикальные опоры. Постоянно проверяйте положение водяным уровнем. Фиксация делается длинными болтами по дереву, с каждой стороны нужно вкручивать по четыре метиза.

После застывания бетона выполняют монтаж вертикальных опор
Практический совет. Если у вас нет специальных металлических подставок, то их можно сделать самостоятельно из швеллера и уголков.
Есть и другие варианты установки. Делайте опоры длиннее, тщательно пропитывайте антисептиками нижние концы, намазывайте их гидрозащитными мастиками и закапывайте в землю. Чтобы они со временем не опускались в землю, положите в ямки металлические пластины размером не менее 40×40 см. Вместо металлических пластин, можно пользоваться блоками и иным стройматериалами, не боящимися влаги и имеющими достаточную механическую прочность. На эти элементы опираются вертикальные стойки.

При бетонировании самой опоры, нижнюю часть бруса тщательно пропитывают защитным составом
Шаг 4. Вставьте в гнезда доску с прорезями, проверьте ее положение. Прикрутите саморезами. Доска должна быть горизонтальной, а если во время бетонирования подставок была допущена ошибка, то для выравнивания можно воспользоваться клиньями. Лучше подбирать металлические отрезки, деревянные со временем дадут усадку, козырек может немного перекоситься. А это значительно ухудшает внешний вид конструкции.

Устанавливают и прикручивают горизонтальную доску
Шаг 5. Дюбелями закрепите на фронтонной стене вторую доску с прорезями, она должна быть на 20–25 см выше первой, установленной в опорах. Разница по высоте обеспечивает уклон и стек воды.

Вторую доску крепят к стене дюбелями
Важно. Во время фиксации обращайте внимание, чтобы все прорези на двух досках располагались на одной линии. Сделать этого намного легче при помощи лазерного уровня. Если его нет, то надо пользоваться угольником и веревками. Привяжите веревку одним концом к уже установленной доске, а вторым к устанавливаемой. Передвигайте элемент по стене влево/вправо до тех пор, пока угол между досками не будет равняться 90°.

Проблемы с установкой дюбелей
Доска должна быть строго горизонтальной, постоянно пользуйтесь пузырчатым уровнем. Дюбели фиксируйте в шахматном порядке.
Шаг 6. Вставьте в прорези доски для крепления кровли, прикрутите их саморезами. Метизы вкручивайте под углом, это минимизирует вероятность раскалывания.

В подготовленные пазы вставляют деревянные рейки обрешетки
Практический совет. Намного безопаснее вкручивать саморезы в предварительно высверленные отверстия в досках. Их диаметр должен быть на 1–2 мм меньше диаметра метиза, а глубина на 0,5–1,0 см короче. Такая предварительная подготовка не оказывает негативного влияния на прочность фиксации, зато почти полностью исключает раскалывание тонких досок. Проверьте устойчивость конструкции, если есть шатания, то можно установить диагональные раскосы.
Шаг 7. Прибейте к боковым доскам накладку высотой примерно 5 см, закройте ее декоративными металлическими планками. Настелите на доски декоративные маты из бамбуковых палочек. Вместо них можно пользоваться ковриками из других натуральных материалов, их сегодня в реализации большой выбор. Такой коврик существенно улучшает внешний вид сооружения, козырек получается в стиле кантри.

Сверху козырек накрывают декоративным ковриком
Шаг 8. Закрепите на декоративном коврике рейки 20×40 мм для крепления металлической кровли. Количество выбирается на месте с учетом размеров козырька. Размещать их надо симметрично на расстоянии примерно 40 см. Если декоративный коврик не использовался, то кровля фиксируется непосредственно к доскам, дополнительной обрешетки не требуется.

Набивают рейки для фиксации кровельного покрытия
Шаг 9. Установите кровельный материал на козырек. Лучше всего пользоваться металлическими профлистами. Цвет рекомендуется коричневый, он больше всего подходит к натуральной гамме.

Монтируют кровельное покрытие на козырек
Цены на профнастил
Профнастил
Видео — Козырек над крыльцом из дерева своими руками
Дерево имеет свои несомненные преимущества, которые сделали этот строительный материал универсальным. Современные пропитки дают возможность делать эффективную защиту пиломатериалов от гнили и плесени, что существенно увеличивает срок службы деревянных конструкций. Но в любом случае они по эксплуатационным характеристикам уступают металлу. А как сделать козырек над крыльцом с металлическим каркасом, читайте на страницах нашего сайта.
Навес над крыльцом и входной дверью частного дома: фото примеров
Разделы статьи:
Навес над крыльцом, расположенным перед входной дверью – обязательный элемент декора загородного дома. На основании внешнего вида входа и фасада у гостей складывается первое впечатление о самом доме. Также козырек необходим для защиты внешней стороны двери от атмосферных осадков.

Типы козырьков и навесов
Главное предназначение навеса — защищать крыльцо здания и входные двери от прямых солнечных лучей, дождя и снега. Козырьки могут отличаться размерами, формой, дизайном, способом установки. Их изготавливают из разных строительных материалов.
Чаще всего над входом частных домов вещают козырьки небольших размеров, которых достаточно для защиты крыльца и входа. Но, некоторые владельцы загородных коттеджей обустраивают широкие навесы, а бока зашивают от ветра. Такие конструкции в летний период используются для отдыха, как террасы.

По типу монтажа навесы подразделяются на опорные и навесные изделия. Первые являются массивными конструкциями, которые требуют надежного крепления. Их устанавливают на деревянные или металлические опоры, а боковую часть крепят к стене здания.

Навесные козырьки – это небольшие легкие конструкции, которые закрепляются только над входной дверью. Чаще всего они выполняют только декоративные функции, так как не способны защитить от сильного дождя или снегопада.

Сделать навесы над входной дверью частного дома своими руками помогут фото готовых конструкций. Так намного проще определиться с формой и дизайном козырька для своего жилого дома.
Варианты форм навесов
От конструкции навеса зависит сложность его изготовления и монтажа. При выборе его формы учитываются не только декоративные функции, но и месторасположение дома, климатические условия региона, само предназначение навеса и его ремонтопригодность.
Односкатные
Это самый простой вариант навеса, как в плане конструкции, так и дизайна. Его может самостоятельно смонтировать каждый желающий, так как в данном случае не требуется иметь глубоких знаний в области строительства.

Односкатные крыши используют при обустройстве опорных навесов и открытых летних террас. Чтобы на них не скапливались листья деревьев, вода и снег, они делаются под уклоном. В качестве материала перекрытия чаще всего используется шифер или профнастил.
Двускатные, трехскатные
Двускатные навесы над крыльцом соответствуют деревенскому и классическому стилям. Эффектно смотрятся такие конструкции, когда они выполнены полностью из древесины или перекрыты черепицей. Такие козырьки получаются достаточно тяжелыми, поэтому под них обустраиваются опорные столбы.

Трехскатный козырек – это более сложная конструкция двускатной кровли. Она выглядит более привлекательно, но сделать ее своими руками уже намного сложнее.
Полукруглые
Полукруглые навесы для крыльца ранее вырезали из металлических листов. Сегодня чаще используют прозрачный сотовый поликарбонат. Этот стройматериал достаточно легкий, хорошо гнется, поэтому с ним легко работать. При этом конструкции с использованием поликарбоната выглядят презентабельно.

Для дизайнеров этот стройматериал, который производители изготавливают разных цветов, настоящая находка для воплощения своих идей. Полукруглым можно сделать не только маленький козырек возле входной двери в дом, но и перекрытие для всего фасада здания.
Фигурные
Для изготовления навеса сложной фигурной формы необходимо иметь большой опыт в строительной сфере, поэтому сложно сделать своими руками. Такие конструкции не только привлекают внимание всех окружающих, но и у многих ценителей искусства вызывают восхищение.

Для сооружения навесов фигурной формы мастера используют кровельные материалы, которые легче поддаются обработке. Такими являются монолитный (сотовый) поликарбонат и мягкая черепица. Фигурная кровля может быть разного исполнения: вогнутая, многоугольная, в виде купола и прочей формы.
Материалы для навеса
На современном рынке строительных материалов предлагают большое количество вариантов кровельного покрытия. Каждый материал имеет свои конструктивные особенности, технико-эксплуатационные характеристики, преимущества и недостатки. Все эти параметры обязательно необходимо учитывать при выборе кровельного покрытия для навесов над входными дверями в загородный коттедж.
Поликарбонат
Этот материал подходит для перекрытия козырьков входных дверей частных домов, выполненных из строительных блоков или кирпича. С деревянными сооружениями поликарбонат плохо сочетается.
Материал имеет привлекательный внешний вид, отличается хорошими эксплуатационными характеристиками, поэтому достаточно востребован на строительном рынке. Под прозрачный сотовый поликарбонат идеально подходят стальные каркасы.

Основные преимущества материала: пластичность, гибкость, легкий вес. Поэтому с ним легко работать и можно создавать изделия сложных геометрических форм. При этом прозрачный поликарбонат является достаточно прочным, устойчивым к механическим ударам. То есть такой навес выдержит любой дождь, град и снег.
Единственный недостаток: материал под постоянным воздействием ультрафиолета теряет свои эстетические свойства. При использовании с солнечной стороны для навеса прозрачного поликарбоната без специальной защитной пленки, материал уже через 2 года эксплуатации помутнеет.
Металлические листы
Стальные листы для перекрытия крыши – это самый бюджетный вариант. Но, для работы с ними необходимо иметь определенные навыки.

Преимущества материала: надежность, прочность, продолжительный срок эксплуатации.
Недостатки: подвержен коррозии, создается сильный шум вод воздействием дождя или града.
Для перекрытия кровли рекомендуется использовать металлические листы, изготовленные из специальных сплавов с антикоррозионными свойствами.
Металлочерепица
Металлочерепица – это современный кровельный материал, отличающийся высокой прочностью, продолжительным периодом эксплуатации и уникальным внешним видом. Перекрыть козырек металлической черепицей можно самостоятельно без привлечения опытных кровельщиков. Материал прекрасно подходит под любое дизайнерское исполнение фасада здания.

Недостатки металлочерепицы: сильно нагревается на солнце, плохие шумоизоляционные показатели.
Профнастил
С профилированными листами легче работать, чем с металлочерепицей. Этот материал и стоит дешевле, и его проще монтировать на крышу. Готовый навес из профнастила имеет привлекательный внешний вид. При этом не требуется дополнительная покраска поверхности.

Единственный недостаток стройматериала: неустойчив к механическим повреждениям.
Козырек над крыльцом своими руками
Чтобы самостоятельно сделать надежный навес, при этом привлекательный на вид, и затем установить его над входной дверью в частном доме, мероприятие необходимо разделить на несколько этапов. Предварительно создается проект конструкции, далее осуществляется подборка и расчет строительных материалов. Только после этого можно начинать монтаж самого навеса.
Проектирование, расчеты
Любой навес предварительно необходимо спроектировать на бумаге и сделать соответствующие расчеты. На чертеже обязательно указываются размеры всех элементов конструкции. По ним осуществляется расчет количества строительных материалов, крепежных элементов.

При проектировании навеса обязательно учитывается ширина входной двери в дом, к которой дополнительно прибавляется 30-50 см. Полученное значение является минимальной шириной навеса. То есть, если ширина двери составляет 90 см, тогда навес должен быть не меньше, чем 1 м 10 см.
Навес проектируется под углом 20-30 градусов. Наклон подбирается в зависимости от ширины козырька (чем шире навес, тем больший делается угол наклона).
Для изготовления каркаса под навес можно использовать деревянные бруски, стальные профиля или уголки. Некоторые заказывают кованые каркасы, затем перекрывают их кровельным покрытием на собственный вкус. Кованые изделия стоят дороже.
Монтаж конструкции
При возведении каркаса для козырька входной двери необходимо обязательно учитывать, какой кровельный материал будет использоваться. Чем он тяжелее, тем мощнее должна быть сделана опорная конструкция.
Если в качестве кровельного покрытия планируется металлочерепица или шифер, тогда для изготовления каркаса рекомендуется использовать железный уголок или бруски размером 5х10 см. Под легкое покрытие из сотового поликарбоната подойдут стальные арматурные пруты диаметром 5 мм и более.

Для закрепления каркаса к фасаду здания используют анкерные болты, а участок соединения его со стеной закрывают защитной планкой. Под тяжелые навесы дополнительно устанавливают опоры. Опорные стойки вставляют в предварительно выкопанные ямы, засыпают щебенкой, армируют и бетонируют.

После фиксации каркаса к стойкам и дому остается перекрыть крышу. Вариант крепления зависит от выбранного кровельного материала. Металлическую черепицу или профлисты прикручивают к основе саморезами по металлу.

Сотовый поликарбонат также крепится саморезами, но через термошайбы, при этом торцы необходимо заклеивать специальной лентой. Под укладку шифера обустраивается деревянная обрешетка, к которой его прибивают специальными шиферными гвоздями.
Рекомендации специалистов
Металл подвергается коррозии, которая разрушает его структуру. Поэтому, чтобы продлить период эксплуатации металлической конструкции, ее тщательно зачищают, покрывают несколькими слоями грунтовки, затем лакокрасочным составом. После полного высыхания изделие можно красить. Для покраски рекомендуется использовать качественные масляные эмали.
Если в качестве навеса используется защемленная в стене железобетонная плита, сверху ее необходимо обязательно покрыть слоем гидроизоляции. Для этого можно использовать битумную мастику. Участки соединения кровли с фасадом также обрабатываются.

Если навес представляет собой цельную деревянную конструкцию, стройматериал предварительно обрабатывается специальными составами против гниения и возгорания. Это позволяет увеличить срок эксплуатации деревянных изделий до 60 лет.
Пластиковые навесные конструкции не требуют дополнительной защиты, но они способны деформироваться при высоких и низких температурах. Поэтому на несущих элементах не рекомендуется использовать достаточно жесткие крепежные детали. Иначе полимерное покрытие может потрескаться в процессе деформации и не только потерять свой эстетичный внешний вид, но и привести к поломке отдельных элементов навесной конструкции.
Над дверными крючками — Walmart.com
«,» tooltipToggleOffText «:» Нажмите выключатель, чтобы получитьБЕСПЛАТНАЯ доставка на следующий день!
«,» tooltipDuration «:» 5 «,» tempUnavailableMessage «:» Скоро вернусь! «,» TempUnavailableTooltipText «:»Мы прилагаем все усилия, чтобы снова начать работу.
- Временно приостановлено в связи с высоким спросом.
- Продолжайте проверять наличие.









Дерево имеет свои несомненные преимущества, которые сделали этот строительный материал универсальным. Современные пропитки дают возможность делать эффективную защиту пиломатериалов от гнили и плесени, что существенно увеличивает срок службы деревянных конструкций. Но в любом случае они по эксплуатационным характеристикам уступают металлу. А как сделать козырек над крыльцом с металлическим каркасом, читайте на страницах нашего сайта.






