Чертеж козырька над дверью: Конструкция козырька над входом
Конструкция козырька над входом
Каждый элемент постройки имеет свои требования, соблюдение которых обеспечивает безопасность жильцам. Их нарушение может привести к серьезным дефектам. Кроме того, подобная оплошность может испортить внешний вид здания.
Одна из основных частей входа постройки – козырек. Он не только защищает крыльцо и дверь от осадков, но и завершает облик фасада. Однако конструкция также имеет свои требования, соблюдение которых может значительно упростить и обезопасить жизнь жильцам и посетителям постройки.
Общие требования
Козырёк дома обрамляет дверной пролет, а значит – влияет на эстетику всего дома. Кроме эстетичного внешнего вида, устройство должно отвечать следующим требованиям:
- Безопасность. К козырькам предъявляются определенные нормы, прописанные в соответствующем СНиПе. При несоблюдении данных требований конструкция рухнет от ветра или избыточных осадков. Особый контроль при монтаже козырька уделяют его наклону.

- Прочность. Очень часто домовладельцы обустраивают над входами тонкие, скорее декоративные козырьки, делать подобные надстройки не рекомендуется. Устройство следует монтировать из долговечных, а главное, прочных материалов, которые выдержат экстремальные условия окружающей среды. Во многом жесткость конструкции обеспечивается качественным и прочным крепежом.
- Конструкция. Само строение козырька играет решающую роль в его долговечности и прочности. Он должен быть значительно шире входной двери, чтобы закрывать дверь от косого ветра и осадков. Ширина козырька зависит от строения фасада, обычно его глубину делают от одного до полутора метров.
Помимо крепежей и полотнища, конструкцию дополняют сточной системой. Вода должна стекать не на землю, а в сосуд или ливневую канаву. Чтобы конструкция работала нужно соблюдать угол уклона и поворот составных элементов.
Обязательные нормы
Кроме обобщенных характеристик, строители при создании козырьков пользуются следующими инструкциями:
- Полотнище козырька должно быть устойчиво и к температурным перепадам, и к осадкам, а главное – к порывам ветра.

- Дизайн конструкции выбирают исходя из общей архитектуры фасада. Также и уклон разрабатывается с учетом стилистики здания.
- Для крепежей подходят только специальные элементы для наружных работ, обычные соединения попросту не выдержат сильных ветровых нагрузок.
При соблюдении вышеописанных норм, вы сможете соорудить качественный и прочный козырек, который станет изящным дополнением фасада и прослужит вам ни один десяток лет.
Требования к сборке
При создании козырька важны все этапы, но решающий среди них – создание и сборка. Если во время монтажа или создания чертежей будут сделаны недочеты, всю работу придется делать заново. Процесс создания козырька включает в себя следующие этапы:
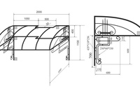
- Проектирование. За основу можно взять проект дома или только фасада и исходя из его особенностей строить схему козырька. Его размер должен на 20-30 см выходить за пределы дверного проема. На чертеже козырька над входом помещения указывают все габариты полотнища и крепежей козырька.
- Сборка. Сначала нарезают материал для полотна по размерам чертежа (если конструкция из металла – срезы шлифуют, если из поликарбоната – закрывают заглушками от дождя). Далее арматуру, прутья или металлопрофиль нарезают для стоек и сваривают их между собой. Для сборных конструкций используют крепежи (болты, гайки и др.).
- Обработка. Данный этап гарантирует долгую сохранность металлических элементов навеса. Для защиты металла от ржавчины и коррозии сварочные швы и срезы шлифуют и покрывают антикоррозийными красками. Перед этим поверхность конструкции грунтуют материалом по металлу.
- Скрепление элементов. Когда все детали высохли – к ним можно крепить сам козырек. Отверстия для крепления обязательно обрабатываются против ржавчины.
- Установка. Для монтажа козырька в стене делают пазы перфоратором, в стойках конструкции делают отверстия соответствующего диаметра. После чего навес крепят над входным проемом. Подобные работы сподручнее выполнять вдвоем.
Ровность козырька выверяют строительным уровнем (не сверяйте расположение козырька по уровню кладки или дверному косяку).
Работы выполняются в описанной последовательности, тогда конструкция будет отвечать всем требованиям СНиПа.
Обратите внимание! Особое внимание уделяют уклону козырька на общественном здании.
Советы по созданию чертежа
Козырек – на первый взгляд очень простая конструкция. Однако во время работы многие недочеты образуются сами собой. Чтобы такого не случалось обязательно стоит делать проектирование и чертеж, он позволит рассчитать уклон, размеры и другие параметры конструкции.
Сегодня сделать чертеж очень просто, можно даже взять за основу готовую схему. Для этого следует взять готовые чертежи и на их основе спроектировать подходящий козырек. Если вы не имеете базовых навыков проектирования, обратитесь в архитектурное бюро. Подобная услуга по цене доступна большинству потребителей.
Исходя из схемы, проще считать требуемые материалы и составлять смету.
Типы козырьков
Существуют опорные и подвесные козырьки. Первый тип конструкции монтируется при помощи подвесных столбов, а второй – крепится на стену. Для опорных конструкций используют металл, для подвесных дерево, металл и другие материалы. Также козырьки могут иметь разную форму, по этому признаку их делят на:
- односкатные, верхней частью соединяющиеся со стеной;
- двухскатные, имеющие гребень и скаты, направленные по бокам от проема;
- арочные – оформляются полукругом;
- шатровые – представляют собой округлые навесы.
Стенки односкатных козырьков часто зашивают с обоих или с одной стороны для повышения ветрозащиты, для этой же цели монтируют перила.
Инструмент и материал для создания козырька.
Качественные материалы и инструменты – залог долговечной конструкции. Для легкой реализации чертежа потребуется:
- Кровельный материал.
Обычно он совпадает с покрытием крыши самого здания или прилегающих построек. Одними из самых практичных материалов считаются поликарбонат и металлопрофиль. Однако если на вашем участке кровля из черепицы – используйте ее и на козырьке либо выбирайте другое покрытие в тон основному. - Крепежи. Для скрепления труб и стоек между собой используют болты, анкеры или саморезы.
- Отделочные материалы. Чтобы защитить металл от коррозии используют грунтовку и эмаль по металлу.
- Сварочное оборудование. Надежнее всего соединить некоторые элементы каркаса сваркой.
- Болгарка, и дрель. Можно использовать как ручные, так и электрические инструменты.
- Кисточки или распылитель. Удобно наносить краску распылителем, если у вас нет такого агрегата используйте краску в баллоне или кисть.
- Индивидуальная защита. Работа с такими инструментами может привести к травмам или отравлению, поэтому обязательно защитите руки перчатками, а дыхательные пути респиратором.
При работе со сваркой используйте маску или очки (в зависимости от вида сварки).
СНиПы для козырьков от 2009 и 2012 года
Требования к козырькам прописаны в документах от 2009 и 2012 года. Документ от 12 года включает в себя требования по монтажу конструкций на общественные постройки. Он предусматривает отсутствие водостока на одноэтажных зданиях с навесом. В этом же СНиПе говорится, что конструкция не может быть меньше 60 см.
Зачастую домовладельцы обустраивают на домах металлические каркасы. Однако в СНиПе данное требование не прописано как основное. В целом металлическая конструкция имеет следующие преимущества:
- Эстетичный дизайн.
Особенно интересно на фасадах смотрятся кованые элементы в сочетании с черепицей. - Высокая устойчивость. Металл в качестве каркаса считается одним из самых прочных материалов, он выдержит большое количество осадков и сильные порывы ветра.
- Долговечность. При правильной обработке и регулярном обновлении защитного слоя конструкция устойчива к температурным перепадам и высокому уровню влажности.
Металлические каркасы для козырьков бывают сварными и кованными. И каждый из них имеет свои требования.
Обратите внимание! Для каркаса можно использовать и круглую и квадратную трубу.
К кованным изделиям предъявляется гораздо больше требований, нежели к сварным. Как правило, кованные изделия более сложны в изготовлении, и многие мастера при проектировании попросту не учитывают их функциональность и безопасность.
Особо строгих требований к навесам и козырькам не предъявляют, главное – соблюдать угол уклона. Помните, что для долговечной конструкции нужны качественные материалы.
С таким набором вы сможете создать навес практически любой сложности и уклона.
Что еще почитать по теме?
Автор статьи:Сергей Новожилов — эксперт по кровельным материалам с 9-летним опытом практической работы в области инженерных решений в строительстве.
Вконтакте
Одноклассники
Google+
Виды навесов над крыльцом и технология установки своими руками
Входная дверь в частном доме, или на даче часто подвергается воздействию непогоды: дождя, снега, знойного солнца, ветра. Для этих целей и сооружается крыльцо с навесом. Кроме практичных целей, возвести козырек над крыльцом своими руками – отличная возможность украсить фасад здания, придать ему оригинальности.
Существует множество разновидностей данной постройки, которые отличаются материалами изготовления, формой конструкции. В данной статье мы рассмотрим, как сделать козырек над крыльцом, чтобы он служил надежной и красивой защитой дома.
Зачем нужна крыша над крыльцом
Навес над входной дверью присутствует во многих домах. На данное сооружение возложено несколько функций:
- защитная. Оно используется как конструкция, защищающая входную дверь от палящего солнца, попадания влаги;
- обеспечение уюта жителей дома. В непогоду более комфортно спрятаться под навесом, открывая замок входной двери;
- декоративная. Если козырек оформить под дизайн дома, он украсит и дополнит экстерьер сооружения.
Устройство козырька
Все навесы, независимо от их формы и материала изготовления, состоят из двух частей:
- каркаса. Это рама-основа, на которой держится все сооружение;
- внешнего покрытия – кровельного материала.

Виды козырьков для крылечек
По способу монтажа
В зависимости от конструкции изделия и способа его монтажа, навесы делятся на опорные и подвесные. Подвесные козырьки имеют небольшие размеры и фиксируются на наружной стене здания. Опорные конструкции более массивные, поэтому устанавливаются на металлические трубы или деревянные балки.
Варианты крепления навесовПо форме
Козырьки над крыльцом могут быть разнообразной формы:
- одно- и двускатные;
- в форме арки;
- шатровые.
Также конструкция может быть открытой (без боковых стенок) и закрытой (огражденной глухими стенками, закрывающими площадку перед входной дверью от непогоды). Различные варианты конфигурации козырьков продемонстрирует фотогалерея.
По использованным материалам
Каркас навесной конструкции крыльца чаще всего изготовляется из металла и дерева. Дерево – более дешевый материал, проще в обработке, но прослужит недолго.
Металлические изделия имеют длительный эксплуатационный срок, но чтобы сделать такой навес над крыльцом своими руками потребуются определенные навыки и специальные инструменты.
Так для изготовления козырьков часто используется металлопрокат. Детали основы либо собираются при помощи сварки, либо крепятся на болты. Чтобы металлический каркас прослужил дольше, перед установкой его следует хорошо зашкурить, загрунтовать, а затем уже красить.
[su_label type=»important»]Внимание:[/su_label] [su_highlight background=»#F7D1CD»]металлическое основание для козырька довольно тяжелое, это следует учитывать при составлении проекта навеса.[/su_highlight]
Более легкими являются алюминиевые трубки и уголки. Материал хорошо гнется, легко поддается порезке, не требует дополнительной обработки.
Навес над крыльцом из металла (алюминиевая основа)Роскошно смотрятся козырьки на кованом каркасе. Они поражают разнообразием форм и конфигураций – резные листья, вьющиеся стебли, диковинные цветы… Навес над крыльцом кованный — настоящее произведение искусства.
Это одновременно красивый и надежный материал, который придаст стиля и оригинальности любому козырьку.
[su_label type=»warning»]Учтите:[/su_label] [su_highlight background=»#FFEED5″]кованые изделия – сложная ручная работа, поэтому стоят они недешево.[/su_highlight]
Различные кованые козырьки над крыльцом, фотоОсобняк из бревен или обшитый досками гармонично дополнит козырек над крыльцом из дерева. Это экологичный материал, который подчеркнет индивидуальность постройки.
[su_label type=»success»]На заметку:[/su_label] [su_highlight background=»#E0FEC7″]не стоит бояться того, что каркас из дерева прослужит недолго – существуют специальные защитные средства, пропитки, которые защищают древесину от гниения.[/su_highlight]
Деревянный козырек над крыльцом, фотоПокрытие навеса
Материалы для покрытия козырьков тоже поражают своим многообразием. Чаще всего они подбираются под кровлю дома, но придерживаться этого правила необязательно.
Легким и прочным материалом, подходящим практически под любое покрытие, является поликарбонат.
Из данного материала можно запросто сделать навес над крыльцом своими руками. Он гибкий и пластичный, что позволяет делать козырьки для веранды любой формы, даже арочной.
Очень практично и красиво смотрятся покрытия из профнастила (профлиста). Это лист оцинкованной стали, профилированный для большей жесткости. Используется он для наружных покрытий. Схожими качествами обладают и навесы над крыльцом из металлочерепицы. Но поскольку данный кровельный материал довольно тяжелый, конструкции из него делаются преимущественно опорными, одно — или двухскатными.
[su_label type=»info»]Совет:[/su_label] [su_highlight background=»#D9F0F9″]изготовляя козырек над крыльцом из металлочерепицы, при изготовлении каркаса учитывайте давление кровельного материала.[/su_highlight]
Профлист, козырек над крыльцом, фотоТехнология возведения конструкции
Как построить навес над крыльцом? Сначала необходимо определиться с материалами.
Проще всего начинающему строителю будет работать с поликарбонатом, поэтому рассмотрим его монтаж. Начинающим строителям лучше начать с несложной конструкции без сгибов, с уклоном для стока воды.
Проектирование
Перед тем как сделать навес над крыльцом, следует рассчитать его размеры, сделать чертеж конструкции. Это даст визуальное представление о том, как будет выглядеть крыльцо частного дома с навесом после сооружения, поможет рассчитать количество необходимых материалов, декоративных элементов.
Козырек над крыльцом не должен быть слишком узким, так он не защитит от ветра и дождя. Оптимальная длина свеса — 80 см, а по ширине он должен превышать дверной проем на 40-50 см. Чтобы на крыше навеса не задерживались осадки, она должна быть слегка покатой.
[su_label type=»warning»]Учтите:[/su_label] [su_highlight background=»#FFEED5″]несущая конструкция козырька крыльца сооружается отдельно и устанавливается уже готовой.[/su_highlight]
Чертеж навеса над крыльцом, фотоПодготовительный этап
Непосредственно перед установкой навеса над крыльцом из поликарбоната следует расчистить площадку для строительства и подготовить все необходимые материалы:
- листы сотового поликарбоната толщиной не менее 10 мм, чтобы крыша навеса была устойчивой;
- трубы из металлического профиля;
- сварочный аппарат;
- шуруповерт и дрель;
- саморезы;
- рулетка, уровень, карандаш.

Порядок монтажа поликарбонатного козырька крыльца
Сначала при помощи рулетки, строительного уровня и карандаша производится разметка на стене дома. На ней, согласно чертежу, отмечают основные детали крепления каркаса навеса.
Разметка под установку основы козырькаДалее из профильных труб изготавливает каркас конструкции. Он имеют треугольную форму. Соединяются трубы при помощи сварочного аппарата. На земле собирают основу полностью либо частично (это зависит от ее габаритов и веса).
Каркас козырька может иметь несколько перемычек, чем он длиннее – тем их должно быть больше. Они существенно увеличивают жесткость и устойчивость конструкции навеса.
Схема изготовления металлического каркаса козырька крыльца[su_label type=»success»]Совет:[/su_label] [su_highlight background=»#E0FEC7″]чтобы сварочный шов был менее заметен, его можно обработать наждачной бумагой.[/su_highlight]
Затем в трубах делают отверстия для болтов, и конструкция крепится к стене здания.
Делается это при помощи саморезов или анкерных болтов. Чтобы не утяжелять конструкцию, листы поликарбоната крепят после установки основы. Закрепить основание козырька следует в четырех местах: в верху и внизу с каждого края изделия.
[su_label type=»info»]Совет:[/su_label] [su_highlight background=»#D9F0F9″]монтажа основания навеса следует выполнять совместно с помощником.[/su_highlight]
После установки каркас козырька грунтуют и окрашивают. После этого приступают к монтажу листов поликарбоната. На торцах изделия устанавливается специальная герметизирующая лента, которая заводится в профиль, установленный на торце каркаса.
Установка поликарбонатных листов[su_label type=»important»]Важно:[/su_label] [su_highlight background=»#F7D1CD»]листы материала не стоит крепить впритык, под воздействием температур материал может расширяться. Также фиксировать болты следует не менее чем за 4 см от края листа, чтобы не разрушить его.[/su_highlight]
Чтобы правильно закрепить листы поликарбоната, воспользуйтесь данной схемой:
Варианты того, как фиксируется поликарбонатная кровля козырькаПосле установки козырька следует загерметизировать швы там, где навес примыкает к стене.
Это обеспечит защиту входной двери от попадания влаги. Для этих целей можно использовать металлическую планку.
После снимают защитную пленку с изделия – навес готов к использованию. При наличии опыта можно соорудить даже округлую конструкцию.
Поликарбонатный козырек для крыльца полукруглыйИтог
Крыльцо – лицо каждого дома. Оно придает зданию уникальности и неповторимости. Поэтому от его оформления зависит внешний вид особняка. А крыша конструкции не только послужит дополнительным украшением, но и защитой от непогоды. Материалов для ее изготовления множество, а разнообразие конструкций (от простых до более сложных) позволяет установить ее самостоятельно. Приложив немного усилий, вы создадите практичный и красивый архитектурный элемент.
Козырёк над входной дверью из поликарбоната своими руками: фото и виды навесов
Козырек над дверью, выполненный из поликарбоната, будет служить не только надежной защитой крыльца от дождя и снега, но и позволит оформить вход в дом в неповторимом стиле.
Этот современный и эстетически привлекательный материал на сегодняшний день является лучшим решением не только защиты крыльца от атмосферных осадков и солнца, но красивого оформления входа в дом. Доступность материала и несложный процесс монтажа, позволят сделать козырек над входной дверью из поликарбоната своими руками.
Конструкция и оформление козырька из поликарбоната
Вернуться к оглавлению
Содержание материала
Преимущества поликарбоната для козырька
Среди преимуществ поликарбоната для обустройства крыши навеса над входной дверью можно выделить следующие:
Чертеж с размерами козырька из поликарбоната
- доступная стоимость и простой монтаж;
- высокие износостойкие качества, длительный срок эксплуатации;
- ударопрочность и устойчивость при механических воздействиях;
- стойкость к ультрафиолету и перепадам температур;
- гибкость и незначительный вес;
- эстетически привлекательный вид и разнообразие цветов;
- прост в уходе.

Все это делает возможным использовать поликарбонат для изготовления навесов, чтобы не только обеспечить надежную защиту крыльца и двери от негативного воздействия атмосферных осадков, но и подчеркнуть стиль дома.
Вернуться к оглавлениюВиды козырьков из поликарбоната
Свойства такого материала, как поликарбонат определяют и разнообразие возможных вариантов конструкций, которые могут быть следующих видов.
Вариант конструкции козырька из поликарбоната
- Односкатные, они наиболее простые в изготовлении и, как правило, крепятся непосредственно на стену здания. Возможны три варианта козырьков с одним скатом:
- прямой, при его изготовлении необходимо использовать прочный пластик, способный выдержать снеговую нагрузку зимой;
- прямой с подзором, который защитит от дождей косого направления и может быть использован для размещения вывесок рекламного характера;
- с уклоном, такой навес исключает скопление воды и снега на навесе за счет подобранного угла уклона.

- Двускатные, такие конструкции обеспечивают водосток, а также защиту от ветра. Оптимальным каркасом для такой конструкции будут вертикальные опорные столбы.
- Арочный, данный вид является наиболее популярным, поскольку гибкость поликарбонатных листов позволяет спроектировать и воплотить оригинальный дизайн, сочетаемый с высокой функциональностью навеса.
Пример арочного козырька из поликарбоната
- Купольный, также определяется свойствами поликарбоната, его гибкостью и прочностью. Сочетание такой конструкции с другими современными материалами будет содействовать престижу и неповторимости всего здания, выполняя при этом свои основные функции.
Надо отметить, что проектируя конструкцию над входом из поликарбоната необходимо учитывать и общий дизайн здания, чтобы обеспечить общее единство формы и функциональности навеса. Фото оригинальных навесов из поликарбоната над входом можно увидеть ниже.
Оформление и дизайн различных навесов и козырьков из поликарбоната
Вернуться к оглавлению
Виды каркасного основания для навеса из поликарбоната
Как правило, дизайн козырька определяется не только его формой, но и основанием или каркасом, на который крепится навесная конструкция.
Материалом для несущего навеса над крыльцом дома могут быть самые разнообразные материалы.
- Дерево. Наиболее доступный вариант, идеально подходит для изготовления каркаса своими руками. Отделкой могут служить резные элементы конструкции либо окраска или лакировка деталей. Недостатком данного варианта является подверженность древесины гниению, частично исключить которую помогает ее обработка специальными составами.
Конструкция деревянного каркаса козырька
- Алюминиевый профиль. Практичный и долговечный материал для изготовления каркаса. Его монтаж также может быть выполнен самостоятельно, поскольку алюминий легко режется и гнется, что позволяет придать деталям необходимую форму. Однако высокая стоимость алюминиевого профиля делает данную конструкцию менее привлекательной для потребителя.
- Металлические трубы либо профиль. Прочный и износостойкий материал. Простая конструкция навеса может быть закреплена на болты самостоятельно, однако оптимальным вариантом соединения опорных деталей служит электросварка.
Необходимо отметить, что применение для каркаса металлических элементов существенно утяжелит конструкцию, что, соответственно, необходимо учитывать при проектировании опор либо настенных креплений.Сборка каркаса козырька из металлических труб
- Металл крафт. Его использование создает эффект кованого изделия и позволяет создать сложные ажурные узоры. Работа с данным материалом требует специальной подготовки и оборудования, поэтому исполнение каркаса целесообразно доверить профессионалам. Однако основа для навеса, выполненная из крафт металла, может быть уникальной и служить неповторимым украшением дома.
Альтернативным вариантом каркаса служат крепления для козырька в виде кронштейнов. Этот способ используется, когда навес имеет небольшой размер и очень легкий вес. Смотрите в видео процесс изготовления каркаса под козырек из поликарбоната.
Как сделать козырёк из поликарбоната своими руками
Приступая к самостоятельному изготовлению навеса необходимо:
- определиться с формой козырька из поликарбоната;
- оценить свои финансовые и технические возможности, а также опыт строительных работ;
- выбрать оптимальный вариант материала для устройства каркасного основания.

Инструкция изготовления козырька над дверью из поликарбоната позволит выполнить все работы качественно и технологически правильно.
Чертеж с размерами козырька из поликарбоната
- Проектирование козырька.
Началом любого строительства является составление детального проекта и продумывания всех деталей и элементов. При проектировании нужно учитывать:- тип материала каркасной основы, а также размер будущей конструкции определяет общий вес козырька, который необходимо учитывать при разработке технологии крепления и подборе крепежа;
- расположение листов должно быть выполнено таким образом, чтобы ребра жесткости сотового поликарбоната располагались под уклоном, чтобы обеспечить свободный отток конденсата;
- крепление непосредственно к стене допускается, если вынос козырька составляет не более 2-х метров;
- большой навес, вынос которого более 2-х метров, рекомендуется опирать на дополнительные вертикальные опоры;
- шаг обрешетки должен составлять не более метра, чтобы обеспечить устойчивость навеса к снеговой нагрузке;
- для оптимальной защиты входной двери козырек над крыльцом дома должен быть шире, чем дверь на 60-80 см.

- Монтаж каркаса.
В зависимости от типа используемого материала и размера навеса, технология монтажа обладает своими особенностями, однако ключевые моменты остаются неизменными, в том числе:Процесс монтажа каркаса под поликарбонат
- на основании чертежей, детали каркаса нарезаются в размер, и делается разметка точек крепления;
- узлы конструкции последовательно фиксируются струбцинами и закрепляются между собой болтами, саморезами либо привариваются;
- готовая конструкция при необходимости грунтуется и окрашивается, сварные швы предварительно тщательно зачищаются.
- Крепление к стене.
Для небольших навесов, технология монтажа конструкции каркаса следующая:- на стену наносится разметка, и просверливаются отверстия в точках крепления;
- далее конструкция закрепляется к стене посредством анкерных болтов либо саморезов — «глухарей» соответствующего диаметра и длины;
- выбор крепежа зависит от материала как стен здания, так и каркаса.

Когда требуется установить навес большого размера, то:
- первоначально устанавливаются и бетонируются вертикальные столбы-опоры;
Схема для монтажа столбов опор под козырек
- далее всю конструкцию собирают по месту в соответствии с чертежами.
- Закрепление листов поликарбоната.
Крепление листов поликарбоната осуществляется с учетом рекомендаций производителя и с использованием штатных соединительных элементов, в том числе:- герметизирующей ленты, которая приклеивается на торцы листов;
- амортизационные шайбы с внешней крышкой, обеспечивающие герметичность точек крепления;
Шайбы для крепления листов поликарбоната
- соединительные профили, позволяющие состыковывать листы между собой;
- торцевые планки, которые препятствуют попаданию влаги внутрь, а также выполняют декоративную роль.
После завершения монтажа конструкции, примыкающие к стене планки герметизируется кровельным герметиком.
Таким образом, поликарбонат, как материал для изготовления козырька над входной дверью, будет выгодным решением, которое обеспечит как надежную защиту крыльца и входной двери от атмосферных осадков, так и послужит украшением дизайна дома.
Изготовление навеса из поликарбоната своими руками позволит сократить финансовые затраты на его обустройство.
Навес над крыльцом частного дома
«С голубого ручейка начинается река», а входная группа в дом начинается с крыльца и навеса над ним. Это своеобразная визитная карточка каждого хозяина жилища. Козырек над крыльцом, фото примеры удачных решений смотрите в галереях, несет на себе не только огромную эстетическую нагрузку, украшая фасад дома, но и выполняет массу практических функций, главная из которых — защищать уличную пристройку от атмосферных осадков, делая вход в дом более комфортным.
В этой статье мы разберемся, какие варианты навесов над крыльцом бывают, какие материалы используются для строительства, рассмотрим наиболее удачные, красивые и почти универсальные дизайнерские решения для таких пристроек. И конечно сделаем акцент на том, как правильно рассчитать размер козырька для крыльца, какие параметры необходимо учитывать при проектировании, и как сделать навес над крыльцом своими руками.
Конструктивные особенности навесов, крыш и козырьков
Крыльцо частного дома с навесом может быть совсем маленьким, либо напротив, опоясывать весь периметр здания, его размеры зависят исключительно от потребностей владельцев зданий. Но все-таки существуют некоторые правила, которые следует соблюдать, пристраивая навес над крыльцом своими руками, чтобы козырек соответствовал всем строительным нормам, был безопасен в процессе эксплуатации, и прослужил верой и правдой долгие годы.
Круговой козырек над крыльцом из металлочерепицы на столбчатом фундаментеОтметим, что на сегодняшний день самые востребованные конструкции – это козырьки над крыльцом из поликарбоната с металлической профильной или кованой основой, и навес над крыльцом из металлочерепицы на деревянных стропилах.
Если первый вид козырьков больше подходит к каменным, кирпичным и бетонным сооружениям, это может быть и частный загородный дом, и общественное заведение: больницы, школы, ТЦ и пр., то козырьки из дерева востребованы для крыльца частного дома из бревен, бруса, а так же для зданий с фасадом, облицованным под дерево. Справедливости ради, следует уточнить, что навес над крыльцом кованный с разным кровельным материалом подходит как для частных домов, так и для офисных зданий. Основное правило успеха в этом случае — современный дизайн козырька и грамотное сочетание материалов.
Опора для козырька
В зависимости от способа опирания пристройки, крыша может держаться на вертикальных столбах, либо висеть на специальных кронштейнах на стене дома. Расположение точек опор зависит, главным образом, от того, в каком состоянии находится несущая стена состояния, от габаритов и материалов для козырька. Так же немаловажную роль для вида опорной конструкции играет дизайн крыльца с навесом, фото хорошо это демонстрируют.
Таким образом, навес может быть пристроен к дому и являться частью здания, а может быть самостоятельным строением, с собственным фундаментом и опорами. Принципиально, опоры для навеса можно разместить на верхней площадке крыльца, скрепив конструкцию анкерами, либо выкопать отдельные ямы и зацементировать столбы, предварительно устроив гравийно-песчаную подушку.
Опоры для козырьков изготавливаются из разных материалов, самые простые и легкие, безусловно, из дерева, но они нуждаются в предварительной обработке антисептиком и пожаробезопасным составом. Вряд ли что может сравниться с красотой дерева, а возможности современной резки, позволяют приобрести красивые ажурные элементы по очень сходной цене, эстетический эффект от такого декора вполне компенсирует все затраты.
Козырек над крыльцом, фото деревянной пристройки на столбахМеталлические столбы и кронштейны из профилированных труб, пожалуй, самые популярные конструкции для навесов над крыльцом, они могут быть как простой, так и сложной криволинейной формы, поэтому подходят практически для любого экстерьера.
И деревянные, и металлические опоры требуют финишной отделки красками и лаками, так как подвержены негативному воздействию агрессивных осадков.
И, наконец, самыми красивыми и изящными опорами для козырьков по праву считаются кованые изделия. Изысканные и вычурные кронштейны в процессе эксплуатации только приобретают неповторимый колорит времени, подчеркивая самобытность здания, его историю и архитектурную индивидуальность.
Навесы над крыльцом из поликарбоната заняли лидирующие позиции в этом виде строительстваТип крыши
По форме крыша над крыльцом может быть односкатная, двускатная, арочная и даже шатровая. Как правило, каркас козырька изготавливают из того же материала, что и опорные конструкции, хотя при строительстве навеса вполне могут сочетаться и металл с деревом, бетонные столбы с металлическим каркасом и т.д.
Навес над крыльцом из металла с кровлей из профнастила[su_label type=»warning»]Важно:[/su_label] [su_highlight background=»#fdffcd»]Если вы планируете построить навес над крыльцом своими руками, безусловно, следует руководствоваться стилистикой фасада здания, но, прежде всего для козырька, следует выбирать материалы легкие, но прочные, чтобы не нагружать несущие стены.
[/su_highlight]
Односкатная крыша, как правило, бывает небольшого размера, внутренней стороной опирается на стену дома, с наклоном от фасада для стекания осадков. У двускатного навеса скаты имеют наклон, направленный к бокам от крыльца. У арочных козырьков наклон направлен, так же как и у двускатных крыш, иногда выстаиваются полуарочные козырьки, тогда сторона крыши возле стены делается прямой, и устраивается выше уровня переднего края, чтобы снег и влага беспрепятственно скатывались за пределы крыльца. Шатровые округлые или секционные навесы, можно назвать самыми практичными, они закрывают крыльцо от осадков со всех сторон.
[su_label type=»success»]Совет:[/su_label] [su_highlight background=»#e5fec3″]Устраивая козырек над крыльцом из дерева, следует учитывать, что шаг между стропилами не должен быть больше 300 мм. Для металлических конструкций расстояние рассчитывается индивидуально.[/su_highlight]
Капитальный бетонный навес для входной двериКровля
Что касается кровельного материала, которым покрываются навесы над крыльцом, фото к статье иллюстрирует разные дизайнерские решения, то для односкатных и двускатных козырьков подходит любой материал: шифер, толь, профлист, металлочерепица и даже ветки, листья и камыши.
А вот сложные конструкции козырьков целесообразно покрывать поликарбонатом или мягкой черепицей, такая кровля очень надежная, легкая и прочная, и сама по себе может стать украшением навеса. Рынок строительных материалов предлагает поликарбонат и черепицу в разных цветовых решениях, поэтому всегда можно подобрать подходящую расцветку под цвет кровли основного здания, возможно под зелень во дворе или небо, и даже сделать крышу акцентным пятном.
Если решено делать козырек над крыльцом своими руками, следует помнить, что перед укладкой кровельного материал стропила должны обшиваться обрешеткой. Профлист, шифер, и пр. жесткие материалы можно стелить на обрешетку с шагом до 300 мм, положив на нее слой гидроизоляции. Для мягкой кровли на козырьке стропила необходимо укрыть сплошным слоем обрешетки: листовым материалом либо рейками, примыкающими друг к другу.
Полузакрытый навес из поликорбанатаЭскиз и размеры
Перед тем, как построить навес над крыльцом, необходимо выполнить эскиз козырька, в котором следует учесть основные требования к параметрам конструкции.
Так, крыша по бокам должна нависать над крыльцом не менее чем на 300 мм с каждой стороны, а уклон составлять не менее 20о, чтобы снег беспрепятственно скатывался вниз. Высота козырька в самой нижней точке не должна быть меньше 2200 мм. Стандартный навес, который прикрывает крыльцо, и одновременно не перегружает фасад здания, имеет размеры 2 м в ширину, и 1 м в глубину.
[su_label type=»warning»]Важно:[/su_label] [su_highlight background=»#fdffcd»]При выборе материалов и конструкции навеса необходимо учитывать такие нагрузки, как толщина снегового покрова и сила порывов ветра в регионе.[/su_highlight]
Когда принято решения о форме, размерах и материалах для навеса, следует нарисовать схему дома, и дочертить козырек, с соблюдением масштаба. В самостоятельном проекте козырька необходимо отразить размеры, точки опоры, а при необходимости предусмотреть отдельный фундамент для навеса.
Схема небольшого деревянного козырька, такие конструкции целесообразно устраивать на дачеКак сделать козырек над крыльцом, поэтапная инструкция
Строительство навеса над крыльцом — процесс не сложный, но требующий четких расчетов, точного соблюдения технологии, и умения держать инструмент в руках.
Но здесь есть существенный нюанс, если для металлических козырьков требуется купить готовый каркас, или иметь сварочный аппарат, то деревянные навесы можно сделать своими руками и подручными инструментами. Поэтому, далее мы подробно разберем, как сделать козырек над крыльцом из дерева.
За основу козырька возьмем самостоятельную деревянную пристройку над входной дверью, на опорах-столбах, с односкатной крышей, этакую избушку-веранду на курьих ножках.
[su_label type=»info»]Это интересно:[/su_label] [su_highlight background=»#d3e8fe»]А вы знаете, почему избушки в сказках именно на курьих ножках? На самом деле, еще в древности люди заметили, что после пожаров, на болотистых местностях, остатки деревьев хвойных пород стоят остовами веками, не гниют, не портятся. Народ в то время был смекалистый, и сразу понял, в чем дело. Оказывается, если бревно из сосны обкурить в густом дыму на углях, то смола под термообработкой образует прочный защитный слой, древесина становится практически неуязвимой, ничего ей не страшно: не вода, ни микроорганизмы, ни гниль ее не берет.
Поэтому, при строительстве, столбчатый фундамент делали из таких обкуренных бревен, и дома на таком основании стояли больше века. Это уже потом, в сказках, придумали рисовать эмоциональные, бегающие избушки на гигантских куриных ножках.[/su_highlight]
Сначала необходимо перенести чертежи козырька на местность, аккуратно отмерить размеры, забить по периметру колышки, сныть верхний слой почвы. Для пристройки навеса размером 2*1 м, высотой 2,2 м потребуется 2 столба-бревна, длиной 2,5 м, и 2 по 2,7м, обработанные противогрибковыми антисептиками, водоотталкивающими и огнезащитными составами. Те части опор, которые будут вкопаны в землю, необходимо обкурить или обмазать мастикой.
Для установки вертикальных опор по углам выкапываются ямы глубиной 0,7 м, на дно насыпается слой в 200 мм песка, на него слой щебня в 200 мм, все трамбуется. Мешается бетон, на дно наливается немного раствора, устанавливается столб, выравнивается по уровню, строго вертикально, желательно сделать подкосы для фиксации столбов в таком положении, доливается бетонная смесь, чтобы ямка была полностью заполнена.
Через 7 суток, когда бетон схватится, опоры подпиливаются до нужного уровня, напоминаем, что минимальная высота навеса должна быть 2,2 м.
Далее, из брусков делается обвязка столбов по периметру, обязательно проверяйте геометрию периметра, чтобы бревна не завалились в стороны. Столбы у фасада прикрепляются к несущей стене основного строения при помощи анкеров или металлических уголков, таким образом, мы привязываем две конструкции вместе.
Поверх бревен-опор укладываются лаги, на которые крепятся стропила, с шагом 200-300 мм, для этих целей вполне подойдут деревянные бруски с поперечным сечением 50*50 мм.
Конусный навес на столбах надежно защищает крыльцо от осадков[su_label type=»warning»]Важно:[/su_label] [su_highlight background=»#fdffcd»]Чтобы конструкция была герметичной, щель между фасадом дома и пристройкой необходимо тщательно заделать. Для этого подойдет полоса из оцинкованного металла, которую необходимо согнуть вдоль, та часть, которая примыкает к дому, должна быть заглублена в фасад.
Полосу промазывают жидкой битумной смолой, и прикручивают саморезами. Иногда для герметизации используют полиуретановую пену, но она со временем разрушается от воздействия УФ-лучей и влаги.[/su_highlight]
А вот далее все зависит от ваших потребностей, можно стропила укрыть профлистом, поликарбонатом или шифером, на этом изготовление навеса над крыльцом можно считать законченным. Но рачительные хозяева понимают, что такой козырек не долговечен, поэтому на стропильную систему кладется слой гидроизоляции, это может быть рубероид или пароизоляционная мембрана, крепится она к стропилам с помощью обрешетки – это могут быть рейки 20*20 мм, а для мягкой кровли лучше использовать доски, плотно подогнанные друг к другу. На обрешетку укладывается кровельный материал.
Даже маленький кованый козырек способен стать украшением фасадаВ конце делаем отлив. Водосточный желоб крепится параллельно фасада здания, к внешнему краю крыши, чуть с уклоном. На углу водостока фиксируется цепь, по которой вода будет аккуратно стекать на землю.
Далее можно приступать к отделке навеса, его оформление зависит от дизайна и бюджета на козырек.
Обязательно посмотрите видеоролик, в котором подобраны готовые образцы козырьков перед крыльцом из разных материалов.
[su_youtube url=»http://www.youtube.com/watch?v=oAB2MoQ5dBk»]
Читайте больше о выборе и установке козырька
Из чего сделать легкий козырек?
Козырек над крыльцом из поликарбоната — самый простой вариант защитить входную группу от осадков. Выглядит легко и воздушно, можно изготовить своими руками. Козырьки и навесы над входом, фото хорошо это иллюстрирует, лучше делать из цветного, сотового поликарбоната, толщиной 10-12 мм. Прочный материал с ребрами жесткости выдержит сложные механические и климатические нагрузки. Перед покупкой попробуйте слегка скрутить лист, если пошли трещины — материал не качественный. Сгибать только поперек, чтобы ребра жесткости были перпендикулярно изгибу.
Козырек над крыльцом чаще устанавливается на металлический каркас.
Менсолы- продаются готовые, так же можно самостоятельно изготовить из металла, для красоты добавить серийные украшения из ковки. Для поликарбонатного навеса глубиной 1-1,2 м достаточно кронштейна с прилеганием к стене на 0,6 м и вогнутой диагональю. Монтаж листа производится на специальное крепление с термошайбой, на торцы следует установить заглушки.
Как правильно рассчитать размер крыши крыльца?
Согласно нормативного регламента верхняя площадка должна быть 1,5 размера ширины входной двери (1,2 1,5 м), удобная ширина крыльца не менее 0,8 м. Крыша крыльца должна выходить за габариты ступеней на 0,2-0,3 м, чтобы вода не стекала на входную группу.
Крыльцо с крышей из поликарбоната, фото ниже, может быть очень скромных размеров, и наоборот, целый крытый комплекс перед домом. В целях экономии, необходимо учитывать стандартные размеры листа: 6000
2050 мм, можно купить половинку – 3000 мм /2050 мм и четвертинку — 1500/2050 мм, как раз хватить для небольшого навеса, чтобы защитить верхнюю площадку от осадков.
Резаный край рекомендуется обработать мелким абразивом, чтобы обеспечить лучшее примыкание стыковочных и торцевых планок. При монтаже более габаритных конструкций не забудьте приобрести стыковочную планку, с помощью которой можно эстетично и герметично заделать стык. Крепить поликарбонат наружу только стойкой стороной к ультрафиолету, маркировка указана на защитной пенке.
Что следует учесть перед тем как сделать навес над крыльцом?
Перед тем как сделать козырек над крыльцом необходимо определиться с размерами и материалами для изготовления. Козырьки бывают вантовые (подвесные на верхних держателях) – конструкции небольших габаритов из легких материалов, консольные – крепятся с помощью закладных в тело стены и опорные — на столбах, колоннах, стенах, угловых держателях, упирающихся в стену. Вынос подкосов не менее трети от выноса навеса.
Когда определились с параметрами козырька, необходимо вокруг крыльца организовать отмостку, чтобы ливневые воды не размыли грунт, а если дом выше 2 этажей, то обязателен монтаж водосточной трубы.
Для маленьких козырьков каркас делают в виде держателей или простой рамки, для навесов побольше рекомендуется сделать фермы с дополнительным усилением, а при ширине в 3,5 метра ферменная стропильная система обязательна. На коньковых кровлях и в местах с большими ветровыми нагрузками необходимы дополнительные крепления для кровельного материала.
Какие навесы сейчас в моде?
Привычный навес над крыльцом частного дома все увереннее заменяют маркизы. По сути, это кровля из прочной ткани, влагостойкая, невыгорающая от УФ лучей, хорошо защищающая от осадков и выдерживающая град. Стационарные маркизы известны с давних времен – навесы над входом с тканевой крышей.
Интерес представляют современные выдвижные системы, в которых можно регулировать степень открывания и угол наклона. Регулируются навесы в зависимости от интенсивности солнца, чтобы контролировать освещенность помещения. Маркизы устанавливают не только над дверью, но и над окнами. Но это не только козырек на дом, если дополнительно защитить крыльцо вертикальными маркизами, то получится закрытая терраса, которая при необходимости легко превращается в открытый навес.
А если в комплекте купить вертикальные стойки, которые можно устанавливать даже в мягкий грунт, то перед домом получится целая беседка.
Как построить быстро козырек своими руками?
Козырёк над крыльцом своими руками проще всего построить из бруса. Изготовление изделий из дерева не требует специального оборудования, достаточно ножовка и молотка. Чертежи можно сделать от руки, предварительно рассчитав размер пристройки.
Держатели делают в виде прямоугольного треугольника, с катетами 0,6 и 0,9 м, короткая сторона прочно прикрепляется к стене анкерами. Конструкция стягивается поперечными брусками, элемент у стены дополнительно притягивается к дому. Дерево обрабатывается защитными составами, красится. Кровельным материалом послужит шифер, профлист. Так же можно приобрести на рынке готовые держатели из труб либо кованые, прикрепить их к стене над крыльцом, поверх уложив лист поликарбоната.
Какой кровельный материал выбрать на деревянный навес к дому?
Входная группа – это малая архитектурная группа, которая выполняет не только практическую функцию защиты крыльца, но и несет эстетическую нагрузку, и должна гармонично вписываться в общий архитектурный ансамбль.
По рекомендации специалистов, кровля на деревянный навес к дому должна быть из того же материала, которым покрыта основная крыша — это в идеале. Практическое же строительство показывает, что деревянный козырёк над крыльцом можно покрыть любым материалом, который бы деликатно вписался в экстерьер. Если не уверены, возьмите образцы материала и выберите кровлю на месте.
Например, благодаря прозрачности поликарбоната кровля из него воздушная и почти невидимая, поэтому этот материал универсален. Небольшой козырек можно покрыть шифером или профлистом под цвет основной крыши. На большой деревянный навес к дому с опорами и двухскатной крышей подойдет мягкая черепица, она так же бывает разного цвета, поэтому можно подобрать близкую расцветку.
Как заделать стык между козырьком из поликарбоната и стеной?
Козырек над крыльцом из поликарбоната не обеспечивает плотное прилегание листа к стене, чтобы избежать подтеков на фасаде, необходимо выполнить герметизацию стыка. В продаже можно найти специальный пристенный профиль, как на фото.
Козырьки из поликарбоната, по отзывам, все равно подтекают, профиль не обеспечивает надежной герметизации.
Чтобы справится с проблемой, предварительно стык нужно обезжирить, обработать грунтом, затем заполнить его силиконовым бесцветным герметиком и только потом крепить планку. Герметик можно смешать с минеральным утеплителем и этой смесью плотно законопатить стык. Большую щель заделывают фасадной резиной. Дополнительно следует соорудить отлив из оцинкованной стали.
Из какого металла лучше делать навес?
Навес над крыльцом из металла – практичный и красивый вариант защитить вход в дом. Металлический каркас способен выдержать любую кровлю. Самый красивый – кованый, самый практичный – из нержавейки, он не подвержен коррозии. Своими руками каркас для малых и средних козырьков в ширину до 2 м следует варить из усиленного профиля сечением 20*20 мм, стенка 2 мм. Для больших конструкций уголок или труба 40*40 мм, толщина стенки не менее 2 мм.
Чтобы снизить вес, можно применить профиль 20*40, но потребуются дополнительные чертежи и схемы с расчетом ребер жесткости.
Толщина профиля обусловлена весом кровельного материала и снеговыми нагрузками. Для легких материалов, например, поликарбоната, можно сделать более изящные навесы из металла, фото. Для фермы Полонсо можно использовать сталь, оцинкованные трубы и алюминий. Расчет сечения трубы и толщина стенки в каждом случае проводится индивидуально, так как эти критерии зависят от габаритов постройки.
Какую стропильную систему выбрать для навеса?
Устройство стропильной системы для навеса зависит от дизайна крыши основного дома и архитектурных особенностей фасада знания. Чаще всего устраивают одно- или двухскатную крышу, чтобы не перегружать экстерьер дизайнерскими излишествами. На даче или в частном доме целесообразно построить односкатный навес своими руками, перед тем как делать каркас, достаточно просчитать угол наклона крыши. Чтобы рассчитать конструкцию, сечение несущих элементов, ветровую нагрузку, следует руководствоваться разделом 2.01.07-85 СНиП, так как с ростом крутизны уклона скатов и увеличением размера постройки увеличиваются и нагрузки.
Средний угол наклона односкатной крыши над крылечком 20-25о.
В зависимости от уклона используются и разные кровельные материалы. Для рулонных допустимо и 5о, металлочерепица кладется на скат с уклоном на менее 30о, в регионах с большим количеством осадков 45о. Профлист можно уложить на крышу с уклоном 9-20о.
Для каких навесов подходит металлочерепица?
Козырек над крыльцом из металлочерепицы подойдет для всех видов кровли основного дома. Металлочерепица бывает разного цвета, поэтому подобрать нужный оттенок не составит труда. Это очень бюджетный материал, легкий и практичный. За счет малого веса металлочерепица практически не создает нагрузок, поэтому не требуется сооружение громоздкого каркаса. Но материал очень шумный, поэтому посторонние звуки будут беспокоить во время града и дождя.
Навес из металлочерепицы своими руками сооружается в несколько этапов. Стропильная система накрывается обрешеткой, рейками или влагостойкой фанерой.
Первый лист кладется с выносом до 40 мм, второй с боковым нахлестом, без перекосов и зазоров. Следующий ряд кладется с заходом на предыдущий не менее чем на 100 мм. Для фиксации используют саморезы с ЭПДМ прокладкой. На стыке скатов устанавливается уплотнители, на которых и фиксируется коньковая планка.
Как сделать козырек над крыльцом своими руками: инструкция и чертежи
В дачном доме крыльцо обычно невелико и представляет собой небольшую площадку со ступенями. От дождя и снега конструкцию укрывает навес. Поговорим о том, как сделать козырёк над крыльцом своими руками из поликарбоната.
Делаем козырёк над крыльцом
Особенности конструкции
Форма
Направление ската
Опоры
Сборка каркаса и крепление
Выбор и монтаж навеса
Козырёк защищает входную дверь, ступени и перила от дождевой влаги и росы, предотвращает образование наледи и уменьшает количество снега на крыльце.
Обойтись без этого элемента никак нельзя, и чем скорее он будет установлен, тем лучше. Проще всего купить готовую конструкцию — такие изделия продаются и на строительных рынках, и в профильных гипермаркетах.
Её основа — два консольных кронштейна из кованой или штампованной стали, морозостойкого полипропилена, редко — из алюминия, а покрытием служит лист прозрачного, полуматового либо бронзового сотового поликарбоната толщиной 6-10 мм. Сделать козырек над крыльцом своими руками несложно, он продаётся в сборе или в виде комплекта деталей, собрать который по прилагаемой инструкции не сложнее, чем столик из ИКЕА. Но такие модели обычно очень невелики (не более 2,2 м2), а их дизайн довольно скромен.
Более сложные и конструкции можно заказать в слесарной мастерской или кузнице либо сделать своими руками. Для этого необходим чертёж. При работе над ним в первую очередь следует определиться с архитектурным обликом и принципом крепления.
Обычный навес над крыльцом обычно делают скатным (с одним, двумя или тремя прямыми скатами).
Однако специфика сотового поликарбоната в том, что он приобретает жёсткость, будучи изогнутым перпендикулярно рёбрам жёсткости. Этот материал лучше всего противостоит нагрузкам в арочных и сводчатых конструкциях. А прямые (плоские) скаты потребуют устройства частой обрешётки, которая может испортить облик козырька и в любом случае снизит его светопропускание. Сама концепция навеса из поликарбоната подразумевает лёгкость, ажурность и плавный изгиб. Если всё же требуется устроить прямые скаты, лучше выбрать монолитный поликарбонат толщиной от 6 мм (отметим, что и монолитный лист лучше противостоит нагрузкам в изогнутом виде).
С гладкого поликарбоната отлично скатывается снег. Если направить скат на порог крыльца, зимой придётся часто и много работать лопатой. Немаловажен и вопрос безопасности, ведь конструкцию поликарбоната обычно не оснащают снегозадержателями (в принципе, смонтировать их можно, но пострадает эстетика). Это два главных аргумента в пользу того, чтобы устроить скат (скаты) в сторону от ступеней.
Так меньше риска однажды получить за шиворот хорошую порцию снега, да и чистить входную зону будет намного легче.
Козырёк может опираться только на стену или дополнительно на столбы — всё зависит от его площади и снеговых нагрузок в конкретной местности, а также от конфигурации основной крыши.
Консоль
В таком случае изделие опирается только на стену. Хорошо, если при строительстве коробки дома были предусмотрены выпуски брёвен, балок или иные выступы. Но обычно о них забывают и тогда несущие фермы крепят к стене шпильками, винтами-глухарями, разнообразными анкерами (к способам крепления мы ещё вернёмся). Консольная конструкция не рассчитана на большие нагрузки, её максимальная площадь — 3 м2, вынос за плоскость стены —1,5 м. Не стоит монтировать её в том случае, если возможен сход снега на козырёк с основной крыши: велик риск, что крепления или фермы не выдержат удара снежной лавины.
Консоль с косыми подпорками
Общий принцип здесь тот же, но дальние от дома углы не вывешены в воздухе, а тоже опираются на стены через укосины.
Такое изделие на практике может быть до 6 м2 и выступать за плоскость стены более чем на 2 м.
Опора на столбы
При таком виде крепления на опоры можно не бояться снега, если только не прослаблена конструкция стопил и обрешётки. Конструкция может укрыть не только большое крыльцо, но и часть двора. Но есть другая угроза — возможен подъём столбов силами морозного пучения, который неизбежно приведёт к перекосу стропильной конструкции и её повреждению. Чтобы этого не произошло, следует вкапывать столбы ниже глубины промерзания или использовать как основание многовитковые винтовые сваи (заборные забивные штыри не подойдут, так как могут под нагрузкой погружаться в землю). Если крыльцо пристраивается к деревянному дому, ещё не давшему усадки, столбы обязательно нужно оснастить винтовыми компенсаторами. В деревянном доме столбы оснащают винтовым компенсаторами усадки, которые нужно регулировать в первые годы после постройки.
Каркас простейшего гнуто-наклонного козырька типа «крыло» состоит только из ферм (кронштейнов), к которым сверху крепят лист поликарбоната.
Шаг ферм не должен превышать 600 мм. В более сложных конструкциях присутствуют горизонтальные перемычки — царги. Обычно каркас собирают из стальных деталей. Современный сварочный аппарат и маска-хамелеон позволяют изготовить его самостоятельно. При этом основная проблема связана с необходимостью изогнуть трубы или уголки. Есть несколько способов сделать это. Первый — изгибание на стапеле с нагревом газовой горелкой. Второй — устройство прорезей, которые позволяют придать профилю нужную форму по шаблону (затем прорези заваривают) И, наконец, самый простой — изгибание арки непосредственно при сборке несущей фермы.
Принцип изгибания арки при сборке фермы
Затяжка при этом должна быть достаточно мощной, чтобы сопротивляться давлению стоек.
Крепление к стене
Оптимальный способ крепления ферм — шпильками или болтами сквозь стену. Но он не всегда прост. Например, если внутри стены обшиты гипсокартоном или иным материалом, отделку придётся демонтировать. К деревянным (брусовым или бревенчатым) стенам консольную модель можно крепить винтами-глухарями длиной от 70 мм.
К стенам из монолитных блоков и кирпича — болтами со стальными анкер-дюбелями, к пеноблокам — специальными дюбелями длиной от 100 мм (хотя в случае пеноблоков всё же предпочтительно сквозное крепление). Для пустотелых блоков (керамзитобетонных, поризованных керамических, а также щелевого кирпича) оптимальны инъекционные химические анкеры. Ну а в случае каркасной стены необходимо обязательно привязаться к стойкам каркаса, которые ищут, ориентируясь на проёмы (поможет также простукивание стены и пробное сверление).
Для козырька лучше приобрести сотовый поликарбонат толщиной 10 мм или монолитный толщиной 4 мм. Если возможно падение снега и сосулек с крыши основного здания, лучше увеличить толщину материала соответственно до 14-16 и 6 мм. Матовые и бронзовые листы обеспечат лёгкое затенение, прозрачные пропускают свет почти так же хорошо, как силикатное стекло.
Монтаж
Поликарбонат расширяется при нагреве и сужается при охлаждении, поэтому отверстия для крепежа должны быть больше диаметра шурупов как минимум на 3 мм.
Их герметизируют с помощью прозрачных или цветных термошайб. Оптимальный шаг шурупов — 25-30 см; при большем расстоянии навес может не выдержать штормового ветра.
Как сделать козырек над крыльцом (61 фото): создаем красивый вход в дом
Козырек для крыльца — главное украшение входа в здание
Театр начинается с вешалки, квартира с прихожей, а первое впечатление о доме создает козырек над крыльцом. Классический элемент дизайна не только защищает вход в жилище. Он помогает создать его оригинальное оформление. Важную деталь интерьера легко можно создать своими силами, вооружившись нехитрыми знаниями о технологических процессах. Каким должен быть козырек над крыльцом?
Содержание
Красивое крыльцо с декоративными гирляндами на козырьке
Козырек над крыльцом не только украсит вход, но и защитит от непогоды
- Крепким защитником входной зоны от сюрпризов погоды.
- Стильным красавцем, создающим оригинальность в стилистике крылечка.
Козырек над крыльцом — защитник входной зоны от сюрпризов погоды
В изготовлении любой интерьерной детали важно учитывать не просто собственные предпочтения.
От входного навеса нужны хорошие показатели долговечности и практичности. Чтобы изготовить надежный козырек над крыльцом своими руками, будем действовать по плану:
- Выберем материл изготовления.
- Определимся с формой и дизайном навеса.
Козырек над крыльцом — стильный красавец, создающий оригинальность в стилистике крылечка
Козырек над крыльцом должен быть практичен, долговечен и красив
- Осуществим монтаж конструкции с учетом рабочих нюансов.
Материал – всему голова
Строительный рынок радует своим разнообразием кровельного материала, и нам остается только изучить технические характеристики и остановиться на самом лучшем предложении.
При изготовлении козырька над крыльцом могут использоваться различные материалы
Козырек над крыльцом может быть украшен вьющимися растениями
Поликарбонат
Современные покупатели чаще всего выбирают именно этот материал. Красивые, полупрозрачные козырьки из поликарбоната обладают целым рядом преимуществ.
Они:
- Стойкие к температурам (рабочий диапазон составляет от -60° С до +110° С).
- Гибкие. Поликарбонат отличается пластичностью, такая особенность позволяет легко спроектировать любую форму будущего навеса.
Красивые, полупрозрачные козырьки из поликарбоната обладают целым рядом преимуществ
- Ударопрочные. Пластиковые козырьки над крыльцом отлично выдерживают падения сосулек, комьев снега, удары градин и сильного дождя.
- Огнеупорные. Такому козырьку не страшен огонь – он пожаробезопасный.
Но этот красивый, выпускаемый в многообразной цветовой палитре материал имеет и недостатки. Поликарбонат плохо переносит УФ-излучение. Если не покрыть его защитным слоем, ваш навес спустя 1,5-2 года помутнеет и потеряет свои эстетические качества.
Красивое крыльцо с козырьком из поликарбоната
Металл
Недорогой, бюджетный вариант. Правда работать с металлическими листами сложнее, чем с поликарбонатом. Не все умеют пользоваться сварочным аппаратом, хотя сварку можно заменить крепежными болтами.
Металлический козырек над крыльцом долговечный, надежный, но и требовательный. Его нужно будет защищать от коррозии и больше времени тратить на уход.
Козырек над крыльцом сверху можно обшить металлом
Крыльцо в классическом стиле
Металлочерепица
Превосходный внешний вид этого материала выгодно отличает его от аналогов. Козырек над крыльцом из металлочерепицы имеет неограниченный срок службы. Он прост в монтаже, легок, прочен и не требует дополнительного ухода. Металлическая черепица великолепно смотрится с любым видом каркаса. А внешне такой козырек будет выглядеть очень представительно и шикарно.
Превосходный внешний вид металлочерепицы выгодно отличает ее от аналогов
Металлическая черепица великолепно смотрится с любым видом каркаса
Совет! Если вы будете делать конструкцию навеса одновременно с покрытием дома, все работы будут проходить проще и дешевле. Ведь каркасное основание можно изготовить из остаточных материалов.
![]()
Козырек над крыльцом должен гармонично смотреться с самим зданием
Но металлочерепица имеет и недостатки. У нее отсутствует шумоизоляция (если вы любите звук дождя – вам это будет только на руку). В летний зной такой материал будет сильно нагреваться, хотя для расположенного над головами козырька это не существенно.
Козырек с черепицей смотрится очень красиво
Профнастил
Очень ходовой материал, обладающий такими же достоинствами, как и металлочерепица. С ним проще работать, так как листы профнастила имеют большую площадь. Популярность материала объясняется ценовой доступностью и простотой в установке. Козырек над крыльцом из профнастила практичен и долго будет служить вам без дополнительной окраски.
Профнастил — очень ходовой материал, обладающий такими же достоинствами, как и металлочерепица
Имейте в виду, что профнастил механически слабый материал и даже небольшой удар останется заметным на его поверхности. Но ведь всегда можно подобрать для своего любимого крыльца более толстый листовой металл, с заранее нанесенным полимерным защитным слоем.
Козырек над крыльцом может быть выполнен из ударопрочного стекла
Выбираем дизайн
Наши козырьки над входной дверью должны сочетать стиль и функциональность. При выборе дизайна учитывайте материал кровли, размер навеса и направление слива.
Козырьки над входной дверью должны сочетать стиль и функциональность
Дизайн крыльца частного дома призван подчеркивать красоту и целостность всей постройки
Совет! Чтобы упростить разработку дизайна козырька, заранее подготовьте список пунктов, на который вы и будете ориентироваться при окончательном выборе навеса.
Прекрасный козырек над крыльцом
Дизайн козырька над крыльцом зависит от способа монтажа: опорный (массивные конструкции, которые требуют дополнительного укрепления из деревянных балок или металлических труб) или подвесной (более легкая конструкция с небольшими размерами и фиксацией на внешней стенке). В общей стилистике необходимо учитывать и саму форму навеса:
- Плоский.
Самый простенький, открытый со всех сторон вид козырька. Такая конструкция будет защищать только от дождя, идущего ровными струями, что бывает очень редко. Навесик без излишеств можно выполнить из любого материала и каркаса.
Плоский козырек над крыльцом в современном стиле
Стильный козырек с подсветкой
- Двускатный. Несложный в исполнении навес, который укроет не только от ливня с ветром, пурги, но и спасет от ветра. Это сооружение можно изготовить с применением различных материалов.
Двускатный козырек
- Трехскатный. Навес с тремя скатами лучше всего сделать на металлическом каркасе, выбрав для покрытия профнастил, либо металлочерепицу. Трехскатник очень надежный и способен спрятать вас от сильного дождя и снежной вьюги.
Трехскатный навес очень надежный и красивый
Металл. Металлические каркасы можно изготовить путем ковки. Художественная ковка придает металлическим изделиям удивительную легкость и воздушность. Конечно, вес навеса будет большим.
Но эксклюзивные кованые козырьки и навесы над крыльцом имеют презентабельный вид, и целиком оправдывает вложенные усилия. Монтаж такой конструкции требует наличия особо прочных стен.
Козырек с кованым каркасом смотрится очень благородно
Крыльцо с деревянным каркасом
Поликарбонат. Любимый материал дизайнеров, благодаря гибкости которого можно создать оригинальные навесы. Полукруглые, с плавным переходом в прозрачную стену, с дополнительной защитой от пыли и ветра. Пофантазировав, можно создать дизайн навеса в форме зонтика, арки или шатра, придав крыльцу таинственный, сказочный вид.
Изящный козырек над крыльцом из поликарбоната
Сама конструкция навеса может быть открытой, либо дополнительно снабжена боковыми, глухими стенками. Большой навес будет уместным при наличии крупного, массивного крыльца, а вот небольшому крылечку подойдет более изящная, невесомая конструкция.
Небольшое крыльцо с изящной крышей
Большой навес будет уместным при наличии крупного, массивного крыльца
youtube.com/embed/vGXlLVpwm4A» frameborder=»0″ allowfullscreen=»allowfullscreen»/>Приступаем к работе
Как сделать козырек над крыльцом? Здесь нет особых сложностей. Вначале сделайте подробный чертеж навеса со всеми замерами и смету с подсчетом необходимого количества материала. При проектировании учитывайте ряд технических нюансов:
- Длина навеса должна иметь размеры, не менее чем на метр больше ширины двери.
- Ширина козырька будет равняться 1,5 ширины дверей (всего дверного полотна).
Шикарный козырек в японском стиле
Красивый козырек подчеркнет стиль вашего дома
- Расстояние от внешнего края конструкции до фасада дома должно быть таким, чтобы позволять свободно распахиваться входным дверям на 90°, оставляя запас от 30 см.
- Углы скатов (чтобы обеспечить снеговую нагрузку) закладывают от 20°.
При проектировании козырька над крыльцом необходимо учитывать ряд технических нюансов
Давайте, рассмотрим подробную инструкцию по изготовлению простейшего, односкатного подвесного навеса:
- К ширине крыльца добавим по 30 см с обеих сторон.
Мы получим размер навеса. Измерим расстояние, которое должен закрывать козырек. Высоту его определим, учитывая конструкцию дома, с учетом наклона ската. По выполненному эскизу определим его длину. - Из металла или дерева изготавливаем стропила, подкосы, скаты, пристенную балку. Длина стропил должна равняться длине ската. Детали соединяем, используя сварку для металла или саморезы для дерева.
Изготовление простейшего односкатного навеса
- Крепим каркас. Крепеж пристенной балки осуществляется с помощью шурупов-нержавеек, подкосы крепятся анкерами.
- Укладываем обрешетку на стропила (можно взять обрезную доску, либо бруски). Если вы предпочли шифер или металлический лист, учитывайте, что рейки обрешетки при этом должны располагаться в 20-40 см друг от друга.
На данный момент, купить или сделать своими руками козырек для крыльца несложно
- Укладываем кровельное покрытие на стропила и закрепляем его.
- Дополнительно крепим планку примыкания (к стене и верхнему скату) и планку-карниз (на нижнюю зону ската).

- Устанавливает водосток (трубу, желоб, либо цепь).
Выбирайте качественный дизайн козырька, чтобы не только защитить крыльцо, но и украсить дом
При постройке козырька необходимо правильно подобрать цвет и оттенок, или же качественный контраст, форму козырька и размер
Если односкатный козырек будет крепиться к сложной, многослойной стене, навес следует закрепить на внешнем, несущем слое, использовав стальные башмаки-нержавейки. Дополнительно загерметизируйте места стыка подкосов и балок через облицовочный внешний слой стены. Это исключит промокание утеплителя.
Навес над крыльцом – это архитектурно-фасадная конструкция, которая выполняет практическую и декоративную функцию
Красоты вашему дому!
6 советов по обустройству навеса (козырька) над крыльцом частного дома + фото
Содержание статьи
Навес над крыльцом – это, казалось бы, достаточно небольшая деталь здания, но без нее представить себе частный дом невозможно.
Стоит хотя бы однажды выйти на крыльцо в дождь, чтобы понять, как важно обустроить надежный козырек над ним. Обеспечением комфорта его функции не ограничиваются – навес также необходим для защиты входной группы от негативного воздействия осадков, а также для украшения дома. Когда наступает время переходить к обустройству навеса над крыльцом дома, возникает масса вопросов: начиная от материала изготовления и заканчивая возможностью создания козырька своими руками. Каждый из этих вопросов требует подробного рассмотрения, чтобы в дальнейшем навес на 100% справлялся со своими задачами.
№1. Основные требования к козырьку
Вне зависимости от того, будете ли вы покупать готовый козырек или изготавливать его самостоятельно, он должен отвечать некоторым требованиям:
- навес должен выдерживать вес осадков, которые могут на нем скапливаться, или же растений, которые будут его обвивать;
- по возможности козырек обустраивают не только над входной дверью, но и надо всем крыльцом;
- желательно предусмотреть систему сбора и отвода дождевой воды;
- козырек должен соответствовать стилю дома, его входной группы и участка, поэтому при его обустройстве необходимо выбирать подходящие материалы, цвета и формы.
Можно применить в его оформлении тот же материал, что и для крыши дома, или же использовать такие же элементы, как в ограждении.
№2. Материал навеса над крыльцом
Две основные составляющие части любого козырька – это каркас и внешнее покрытие. Именно от них и зависят основные прочностные и декоративные качества козырька. Каркас может быть деревянным или металлическим (кованый или сварной из трубок и уголков). Металлический более долговечный и практичный, а кованый – это еще и роскошный внешний вид. Каркас из металла – это наилучший вариант, если речь не идет о деревянном доме: в этом случае он может просто не сочетаться с основной постройкой. За деревом придется больше ухаживать, да и долговечность его существенно ниже.
Вариантов внешнего покрытия немало. Рассмотрим основные преимущества и недостатки каждого из них.
Козырек из поликарбоната
Полупрозрачные гибкие листы поликарбоната нашли широкое применение не только при обустройстве теплиц, зимних садов, беседок, балконов и ограждений, но и при оформлении навесов.
Преимущества:
- разнообразие оттенков;
- способность рассеивать солнечные лучи;
- низкий вес;
- высокая гибкость, поэтому из поликарбоната можно обустроить козырек любой формы. Работать с материалом легко, поэтому часто при необходимости сделать навес своими руками мастера выбирают именно поликарбонат;
- устойчивость к порывам ветра, огню и гниению, способность выдерживать солидные ветровые нагрузки;
- долговечность.
Среди недостатков не самая высокая устойчивость к механическим повреждениям, поэтому на материале со временем могут появиться царапины и трещины. К тому же, поликарбонат без защитного покрытия под воздействием солнечных лучей будет темнеть или желтеть.
Пластиковый козырек
Внешне похожий на поликарбонат, специальный плотный пластик для наружных работ отличается более низкой ценой. По основным свойствам материал очень близок к поликарбонату, но по прочности немного уступает ему.
Материал представлен в широком разнообразии цветов, но при желании оттенок можно изменить с помощью специальной пленки: во время монтажа или эксплуатации.
Козырек из металла
Преимущества металлического козырька очевидны: прочность, способность выдерживать большие нагрузки, долговечность, устойчивость к перепадам температур. Из металла можно соорудить козырьки интересных форм, но все же данный вариант используется нечасто ввиду некоторых причин: большой вес и необходимость регулярно проводить антикоррозионную обработку.
Козырек из профнастила
Профнастил по популярности может сравниться разве что с поликарбонатом. Материал, который представляет собой металл, с двух сторон покрытый полимерным защитным составом, используется для облицовки домов и балконов, возведения ограждений, а также нашел применение и в качестве материала для обустройства козырьков.
Преимущества:
- долговечность;
- широкое разнообразие цветов, возможность имитации других материалов;
- низкий вес и гибкость, что значительно упрощает работу;
- долговечность.

Профнастил отлично сочетается с металлическим каркасом, а среди его недостатков называют излишнюю шумность во время осадков. Материал имеет низкую устойчивость к механическим повреждениям, а отремонтировать его практически невозможно, поэтому лучше выбирать более толстые листы профнастила (не менее 10 мм).
Кованый козырек
Кованые козырьки над крыльцом заслуживают отдельного внимания. Это самый дорогой вариант из всех, но и выглядеть такой навес будет роскошно. Обычно кованые изделия изготавливаются на заказ с учетом всех пожеланий заказчика. Преимущества и недостатки данных козырьков такие же, как у металлических. Из элементов ковки может быть изготовлен не только каркас, но и кровельная часть козырька, но в любом случае, придется комбинировать ее с другим материалом, чтобы обеспечить крыльцу полную защиту от осадков. Отлично ковка сморится с поликарбонатом.
Козырек из металлочерепицы
Из металлочерепицы можно сооружать симпатичные навесы, но лучше всего они будут смотреться тогда, когда и крыша дома выполнена из идентичного материала.
Преимущества:
- небольшой вес;
- устойчивость к механическим нагрузкам;
- долговечность;
- устойчивость к влаге, перепадам температур;
- эстетичный внешний вид.
Во время дождя металлочерепица будет давать характерный звук. Если это проблема, можно использовать битумную черепицу: она, плюс ко всему, имеет более низкий вес.
Козырек из дерева
Деревянные козырьки могут стать украшением дома, построенного из сруба, а также неплохо гармонируют с кирпичными грубоватыми постройками. Дерево – это идеал экологичности и красоты, но боится влаги, огня, насекомых и плесени, поэтому периодически древесину придется обрабатывать защитными составами. Очень редко древесина используется в качестве внешнего покрытия, но и подобный вариант имеет право на жизнь – только ухода понадобится еще больше. Чаще деревянный каркас покрывают сверху профнастилом, металлом, поликарбонатом, шифером или черепицей.
Козырек из стекла
Стеклянный навес – это решение для самых требовательных. Такой козырек отлично будет сочетаться с домами и участками, выполненными в стиле хай-тек или минимализм. Для обустройства подобных навесов используется закаленное стекло, которое может выдерживать значительные нагрузки, а в случае повреждения никого не поранит. Преимущества: превосходный внешний вид, оригинальность и способность пропускать свет. К тому же, стекло не подвержено коррозии, гниению, перепады температур ему нипочем. Минусы: высокая цена и большой вес.
№3. Форма козырька
Форма подбирается в зависимости от собственных предпочтений, размера козырька и особенностей дома. Самые распространенные варианты:
№4. Варианты монтажа козырька
Способ крепления козырька выбирают в зависимости от того, какой материал используется и какой площади будет навес. Выбирать можно из таких вариантов:
№5. Готовый козырек или самостоятельно изготовленный?
Когда уже есть представления на счет того, какой формы, размера и из какого материала должен быть козырек, наступает время решить, кому же доверить его изготовление – профессионалам или себе самому.
В магазинах есть неплохой выбор готовых навесов для крыльца, ассортимент таких конструкций немалый. В этом случае затраты времени и усилий минимальны, но возрастает цена конструкции, да и вероятность найти именно то, что нужно, не очень высокая. Альтернатива – заказать козырек по индивидуальному проекту, но при этом цена станет еще выше.
Если есть хоть какие-то навыки строительных и сварочных работ, достаточное количество времени и большое желание сэкономить, то можно попробовать сделать козырек своими руками. Такая конструкция будет максимально соответствовать облику дома и требованиям владельцев.
№6. Как сделать козырек своими руками?
Несложные конструкции можно попробовать сделать самостоятельно – это большая экономия. При наличии достаточного опыта можно взяться и за сложные козырьки арочной формы. Весь процесс изготовления состоит из таких этапов, как проектирование и расчет необходимых материалов, создание каркаса (деревянного или металлического), монтаж каркаса на стену и обустройство внешнего покрытия.
Проектирование
Когда речь идет о строительных работах, пусть даже и не самых серьезных, без чертежа не обойтись. На чертеже указывается форма и размеры будущего навеса. Ширина козырька должна быть на 50-60 см больше ширины входной двери. Минимальна длина свеса – 80 см. Если речь идет об односкатном козырьке, то обязательно необходимо предусмотреть наклон: оптимальное значение – 20 градусов. Полученный чертеж будет помогать при проведении монтажных работ, а также поможет сориентироваться, сколько и каких материалов понадобится.
Создание металлического каркаса
Проще всего будет работать с профильной трубой треугольного сечения. Сначала необходимо нарезать отрезки трубы необходимого размера, а затем переходить к сварке. Первым делом сваривают основу каркаса козырька в виде буквы П, затем закрепляют основные элементы. Как правило, каркас полностью собирают на земле, гораздо реже продолжают крепить некоторые элементы уже на смонтированный на стену каркас.
Количество перемычек зависит от длины свеса и типа используемого для покрытия материала. Если будет использоваться профнастил, то между рейками необходимо делать расстояние не менее 30 см. Завершающий этап – монтаж карнизной планки, а также водосточного желоба и трубы, если они предусмотрены конструкцией.
Работать с прямыми деталями не так сложно – трудоемкость повышается, если необходимо сделать навес арочной формы. В этом случае металлические трубы нарезают с большим запасом и сгибают их трубогибом или газовым ключом. За неимением таких инструментов можно воспользоваться болгаркой. С ее помощью на трубе каждый 30-40 см делаются встречные надрезы, после чего ее сгибают до достижения нужного радиуса, а места соединения прорезей соединяют сваркой. Со второй и последующими трубами поступают точно также, а для достижения одинакового изгиба необходимо постоянно прикладывать первую трубу в качестве образца. Теперь остается отрезать лишнее и сварить с заготовкой.
Если козырек будет достаточно большим и тяжелым, не забудьте приварить к каркасу упоры, которые будут вести от наружных углов козырька к стене. Когда все сварочные работы окончены, швы можно сгладить болгаркой, затем загрунтовать и покрасить металл. Следующий этап – создание отверстий в трубах для крепления конструкции к стене. В этих целях используют анкера или саморезы. Небольшие козырьки крепят в четырех местах: вверху и внизу с каждого края, но большие тяжелые конструкции будут нуждаться в дополнительных крепежах. Предварительно на стене лучше отметить место установки козырька – это упростит работу. К установленному каркасу можно крепить покрытие.
Монтаж внешнего покрытия
Для самостоятельного создания козырька лучше выбирать поликарбонат или профнастил – они максимально просты в работе, и в случае ошибок монтажа финансовые потери будут не столь значительны. Профнастил крепят к каркасу с помощью кровельных саморезов с резиновыми шайбами, поликарбонат – с использованием саморезов и термошайб.
На местах крепления к каркасу на поликарбонате высверливают отверстия. Между каркасом и поликарбонатам обязательно обустраивают силиконовую или резиновую прослойку. Термошайбы прикручивают не очень сильно, чтобы обеспечить листам возможность небольшого смещения. Срезы листов необходимо обязательно закрыть торцевым профилем. Желательно между листами поликарбоната оставить небольшие зазоры для температурного расширения. После того, как материал полностью установлен на каркас, можно загерметизировать шов в месте примыкания навеса к стене, для чего используют металлическую планку.
Козырек на опорах
Для больших и тяжелых козырьков описанная выше схема не подходит. Возводить навес на опорах решится не каждый – процесс требует специальных знаний и большого опыта, поэтому в ознакомительных целях приводим приблизительную последовательность действий. Сначала делаются опоры с расстоянием не более 2 м друг от друга. Они могут быть из кирпича, бетона или металла, требуют подготовки фундамента.
В стене делаются выемки для балок, которые укладываются на опоры и в выемки. После этого возводят стропильную часть козырька, производят обшивку и нижнюю подшивку, можно обустроить в навесе точечное освещение.
Создание деревянного каркаса
Каркас из дерева можно изготовить, имея минимальную подготовку в строительных работах. Последовательность действий такова:
- над дверью необходимо отметить линию будущего козырька, просверлить несколько отверстий, а затем закрепить деревянный брусок нужной длины с помощью анкеров;
- под установленным брусом по краям закрепляют два вертикальных бруса;
- под углом к горизонтальной балке с двух сторон крепятся бруски, которые станут основой для монтажа внешнего покрытия. Для поддержки несущих балок крепятся дополнительные балки, ведущие от вертикальных брусков;
- если козырек большой, на балки укладывается обрешетка, и только потом – кровельный материал.
В завершение
Широкий выбор материалов позволяет создать козырек над крыльцом любой формы и размера, но увлекшись декоративной составляющей, не забывайте об основных функциях навеса.
Браться за самостоятельное изготовление можно в случае полной уверенности в своих силах, иначе процесс рискует обернуться зря потраченными деньгами и временем.
Статья написана для сайта remstroiblog.ru.
Как установить защиту от дождя
Защита от дождя, также известная как ветрозащитные экраны, дефлекторы окон или оконные козырьки, улучшает аэродинамику вашего автомобиля при опущенных окнах, снижает раздражающий шум ветра, защитите вас от дождевых брызг и оставьте окна с трещинами на стоянке, не предупреждая потенциальных воров. В дальнейшем мы будем называть их дефлекторами. в этой статье.
На этом рисунке показаны (слева) дефлекторы «In-Channel», которые устанавливаются внутри оконного проема, и (справа) дефлекторы «Stick-On», которые крепятся на внешние дверные рамы с помощью липкой ленты. Здесь мы рассмотрим простые шаги, связанные с установкой обоих типов дефлекторов: In-Channel и Stick-On. Всегда следуйте конкретным инструкциям производителя, продукт которого вы устанавливаете.
Мы также приглашаем вас прочитать нашу статью «Защита от дождя: внутриканальные против наклеек» для получения более подробной информации о двух типах, конкретных предлагаемых продуктах и преимуществах каждого стиля.
Внутренние дефлекторы
Внутриканальные дефлекторы окон изготавливаются с тонким фланцем, который входит в верхний оконный канал двери автомобиля.Когда вы начнете установку, разложите все части и убедитесь, что у вас есть соответствующий дефлектор для каждой двери (передняя сторона водителя, задняя сторона пассажира и т. д.). Начните с опускания окна и заправки фланца до упора в окно канал, начиная спереди. Некоторые дефлекторы полагаются на натяжение, чтобы поддерживать плотную посадку после установки, и они буквально «защелкиваются» внутри оконного канала. Примете ваше времени и вдавите каждый дефлектор как можно глубже в канал.
Следуйте подробным инструкциям, подписанным под каждой иллюстрацией ниже.
Шаг 1: Проверьте установку всех частей дефлектора, чтобы убедиться, что они подходят и могут быть правильно размещены во время окончательной установки.
Шаг 2: Опустите окно и очистите канал окна с помощью моющего раствора, например спирта. Убедитесь, что вся грязь, сажа и песок удалены. Большинство производителей поставляют небольшое количество очистителя. Шаг 3. Если в вашем стильном отражателе используется клейкая полоса, удалите всю липкую подложку.Затем вставьте дефлектор в канал окна, убедившись, что он полностью сидит. Шаг 4: Поднимите окно полностью вверх, убедившись, что дефлектор остается на месте. В некоторых конструкциях может потребоваться аккуратно согнуть дефлектор наружу. Не трогайте окно в течение времени, рекомендованного производителем. Если время не указано, оставьте автомобиль в покое на 24 часа. Важно отметить, что во многих внутриканальных дефлекторах используется небольшое количество двусторонней ленты, которая помогает оставаться на месте после установки.Если у вас есть встроенный
дефлектор, который использует ленту, не забудьте сначала проверить его установку в оконный канал, потому что после его установки с лентой удаление становится более трудным.
Как только вы убедитесь, что подгонка хорошая, снимите дефлектор с оконного канала, очистите область и полностью удалите липкие полосы. Затем заправьте фланец дефлектора. полностью вернитесь в оконный канал. Полностью поднимите окно, чтобы удерживать давление на клей, пока он полностью не приклеится.Отдельные производители укажут время, в течение которого окна должны оставаться открытыми, чтобы все было правильно настроено. Если они этого не сделают, 24 часа — подходящий период времени.
ПРИМЕЧАНИЕ! По нашему опыту, частая причина, по которой дефлекторы каналов неуместны, — это неспособность покинуть окна вверх и автомобиль без помех в течение рекомендованного времени! Лучше всего, если транспортному средству будет разрешено сидеть.Если вам необходимо вести машину, убедитесь, что вы и ваши пассажиры НЕ опускаете окна! Это необходимо для того, чтобы клей (если он использовался)
для отверждения и для того, чтобы пластиковый дефлектор соответствовал форме оконного канала.
Что касается внутриканальных ветровых дефлекторов, у нас есть WeatherTech. Внутренние дефлекторы боковых окон (выберите светлый или темный оттенок), Putco Козырьки для окон с внутренним элементом (тонированные или хромированные), Stampede Snap-Inz Sidewind Deflectors (тонированные), Lund Внутренние дефлекторы окон Ventvisor Elite (тонированные) и GTS Внутриканальные дефлекторы Ventgard Snap Window (прозрачные или тонированные) и это лишь некоторые из них.
Если вы предпочитаете низкопрофильный дефлектор, который плотнее прилегает к дверным панелям, у нас есть AVS. Заводское соответствие цветов внутриканальный низкопрофильный профиль с поверхностями, доступными с различными кодами краски производителя автомобилей. Или выберите низкопрофильную версию с сильно тонированным прозрачным пластиком.
Накладные дефлекторы
Наклеивающиеся дефлекторы прикрепляются лентой к внешней стороне автомобиля прямо над оконным каналом — либо на дверной раме для дефлекторов боковых окон, либо на крыше для задней части
оконные дефлекторы.
Если ваши боковые окна безрамные, вы будете прикреплять дефлекторы прямо к крыше. Поскольку нет оконного канала, который можно было бы использовать в качестве ориентира,
Дефлекторы требуют большей работы «на глаз», чтобы убедиться, что они правильно выстроены, особенно когда задействованы четыре двери.
Следуйте подробным инструкциям, подписанным под каждой иллюстрацией ниже.
Шаг 1. Разложите все части и проверьте соответствие каждого козырька, чтобы представить, как все области совпадают.Шаг 2: Вымойте пораженный участок водой с мылом. Отшлифуйте любые неокрашенные оконные молдинги, которые будут соприкасаться с дефлектором, с помощью легкой протирки. Затем очистите их спиртовым раствором. Ваш дефлекторный комплект может поставляться с собственным раствором «Подготовка поверхности» для молдингов. Шаг 3: Снимите несколько дюймов двусторонней подкладки из ленты с каждой стороны. Тщательно выровняйте и отрегулируйте положение дефлектора до тех пор, пока он не будет выровнен должным образом, затем осторожно нажмите на него, чтобы оторванные концы встали на место.
Шаг 4: Установив дефлектор на место, удалите оставшуюся часть двусторонней ленты, потянув за нее подальше от обоих концов.По мере движения прилагайте сильное давление к соответствующей части дефлектора, чтобы убедиться, что он правильно прилегает.Начните с очистки автомобиля, на который будет наклеена клейкая лента, с помощью очистителя / обезжиривателя и воды. Отполируйте любые молдинги оконных накладок, которые будут соприкасаться с дефлектором, с помощью света. накладка. Очистите всю поверхность, используя изопропиловый спирт, подушечки для подготовки краски или подушечки для подготовки поверхности, которые могут быть включены в ваш набор. На этом этапе удаляется воск и другие загрязнения, которые могут помешать правильному приклеиванию ленты.
Чтобы упростить примерку, оторвите небольшую часть подкладки от ленты на обоих концах оконного козырька. Установите дефлектор в положение, в котором он будет
смонтирован, совместив его с любой имеющейся оконной отделкой. Отрегулируйте положение дефлектора до тех пор, пока вы не будете удовлетворены, затем осторожно нажмите на концы, чтобы отслоившийся клей держался
дефлектор на месте (убедитесь, что концы подкладных полос заметно выступают, потому что вам нужно будет за них ухватиться, чтобы полностью стянуть ленту).
Когда будете готовы, удалите всю оставшуюся защитную ленту, потянув за концевые полосы, которые остались торчать на предыдущем этапе. Снимая оставшуюся часть подкладки, надавливайте на нее по ходу движения. Когда вся подложка будет удалена, потрите рукой взад и вперед дефлектор, чтобы еще немного надавить на все области. После завершения соединения проверьте правильность прилегания, попытавшись покачивать дефлектор; он не должен прогибаться.Следуйте инструкциям производителя о том, чтобы не мыть автомобиль в течение определенного периода времени после установки.
Дефлекторы Stampede Tape-Onz Sidewind являются одними из многих дефлекторов, доступных с имитацией углеродного волокна и камуфляжной расцветки. Если вам нравятся ветрозащитные ленты, наклеиваемые на ленту, The Stampede
Tape-Onz Sidewind Deflectors (доступны в моделировании углеродного волокна и камуфляже), AVS
Дефлекторы окон для аэровизоров с лентой, Putco
Ленточные козырьки окон (тонированные или хромированные), EGR
Ленточные козырьки на окна (тонированные или матовые черные), Rugged Ridge
Ленточные дефлекторы окон (тонированные, имитирующие углеродное волокно, матовый черный), оконные козырьки RI Tape-On (тонированные или хромированные) и GTS
Дефлекторы спортивных окон Ventguard на ленте (тонированные или имитирующие углеродное волокно) среди многих других.
Если вы предпочитаете низкопрофильный дефлектор, который плотнее прилегает к дверным панелям, у нас есть AVS. Ленточные низкопрофильные дефлекторы вентиляционных окон (тонированные или матовые черные). Если вы предпочитаете выбор цветов производителя авто, есть Версия Factory Color Match.
Дождевики / оконные дефлекторы предлагают вам множество преимуществ. Мы уверены, что вы получите массу удовольствия от предлагаемых нами дефлекторов — независимо от того, какие из них вы выберете.Они изготовлены из нержавеющих материалов и долгое время будут оставаться привлекательными и функциональными. Одним из их самых больших преимуществ является то, что вам не нужно платить кому-то большие деньги за их установку — вы МОЖЕТЕ выполнить установку самостоятельно. Мы надеемся, что этот краткий набор инструкций даст вам уверенность в том, что вы сможете двигаться дальше с теми оконными дефлекторами, которые вам нужны!
Пункты, обсуждаемые в статье
Энтузиастов Скотти Кэмерона посещают галерею Энсинитас
Поклонники терпеливо ждут, когда откроются двери Галереи.
Слишком много хорошего!
Скотти рисует воина васаби на забрале одного счастливчика.
Взгляните на примерку Скотти Кэмерона.
Это переполненный дом.
Поклоннику близнецов, который любит бейсбол и гольф.
Лучшее из обоих миров!
Головные уборы водителя Hot Potato.
Свежее снаряжение для дам.
Клюшки Futura на выставке.
Как вам эта отделка Blue Pearl?
Futura T6M с повязкой на голову Circle T.
Тур Крыса
Какой твой любимый головной убор Circle T?
Обратите внимание на нашу новую шляпу Camo Junk Yard Dog.
Дивиденды? Делитель? Коэффициент? — Ваш бережливый соучитель
До школы неделя, и подтверждено, что в этом году вместо обучения чтению языковые искусства и социальные науки, я буду преподавать математику и естественные науки. Значит, это у учителя есть домашнее задание. Поэтому я собирал свой Go Math! Материалы главы 1. При этом Итак, я вспомнил милое занятие, которым занимался со своими учениками несколько лет назад.Видите ли, мне так легко перепутать слова делимый и делитель говоря о делении, поэтому я придумал небольшую умную иллюстрацию к Помогите студентам (кхм… и мне) вспомнить, что есть что. Сначала я прошу студентов подумать
простой задачи деления и напишите ее на листе бумаги. После, я
расскажите им небольшую историю, пока я проиллюстрирую свою проблему разделения. Я начинаю с того, что говорю
что знак разделения подобен дому. Затем я говорю им, что там
большое количество сидит в логове, нарисуйте логово с диваном и выберите
номер, чтобы сесть на диван.
Это число — divi DEN d, число, которое
будет разделен. Далее я объясняю, что к двери приходит номер
в козырьке, потому что на улице солнечный день. Я рисую число с помощью
козырек сверху и дайте им знать, что он называется di VISOR . Это
число, на которое делится дивиденд. Затем я заканчиваю рассказ, рисуя большой
солнце над домом. Я превращаю солнце в заглавную Q и объясняю, что это
номер — это номер Q uotient.Это ответ на проблему разделения. В
Затем ученики приступают к составлению собственных задач деления и маркируют каждую
номер, как показано на моей иллюстрации. Хотите верьте, хотите нет, но это 15-минутное занятие действительно им нравится. (Эй, за все эти годы с тех пор, как я занимался этим делом, я до сих пор помню, что есть что.)
загрузка.
.
Как найти разряженную аккумуляторную батарею, вызывающую автомобильные паразиты
Вы идете в машину, а аккумулятор разряжается за ночь, это может быть неприятно мягко говоря, особенно когда вы опаздываете на работу или получаете дети готовы к школе и готовы уйти. Когда батарея разряжается зарядить утром у вас может быть утечка напряжения в электрической системе что называется паразитической ничьей. Я создал это руководство, которое покажет вам простые решения, а также более сложные электрические проблемы.Вот несколько вещи, которые могут вызвать эту проблему, о чем я расскажу более подробно в следующем руководстве.
Наиболее частые проблемы с электрическими цепями:
- Застрял выключатель сиденья
- Фонарь бардачка на
- Фонарь багажника на
- Купол на
- CD застрял в плеере
- Заедание реле АБС
- Застрял выключатель бокового зеркала
- Генератор закорочен внутри
- BCM или GEM закорочены
- Короткое замыкание модуля сигнализации
- Застрял выключатель замка двери
- Зажигал прикуриватель
- Косметическое зеркало наклеено на
Сценарии, которые будут рассмотрены:
- Моему аккумулятору больше трех лет
- От машины пахнет серой или тухлым яйцом, она мертвая
- Я еду на машине, горит индикатор заряда аккумулятора
- Я только что установил новый аккумулятор, и он потерял заряд
- Я чувствую запах гари, и теперь двигатель не заводится выше
СПОНСОРНЫЕ ССЫЛКИ
Теперь, когда у вас есть представление о том, что может быть не так, давайте подробно рассмотрим, как
Чтобы проверить наличие этих проблем и способы их устранения, приступим.
Шаг 1
Автомобильный аккумулятор предназначен для хранения электроэнергии, которая используется для запуска двигателя. двигатель, когда ключ повернут в положение кривошипа. Если аккумулятор заряжен сигнальная лампа не горела, когда вы в последний раз управляли автомобилем, генератор работает правильно. Если вы заметили, что индикатор батареи горит. вероятно, разрядился, что не является ошибкой аккумулятора. При коротком замыкании аккумулятора появляется запах серы или тухлого яйца. внутри либо из-за возраста, либо из-за перезарядки генератором, либо В этом случае необходимо заменить аккумулятор и проверить выходное напряжение генератора.Учить более
Когда аккумулятор начинает стареть, три года и более, он теряет способность удерживать заряд. ночь, что является первым признаком того, что аккумулятор готов к замене. Узнать больше
Шаг 2
Если вы знаете, что батарея в хорошем состоянии, потому что ее недавно заменили и
утром он мертв, проблема в электричестве.
Есть несколько «живых» электрических цепей, которые
обойти выключатель зажигания, который может потреблять электроэнергию, когда
ключ находится в выключенном положении.Начнем с самых популярных, а потом перейдем к
к более неясным проблемам.
СПОНСИРУЕМЫЕ ССЫЛКИ
Проверьте переключатели управления сиденьем с электроприводом, этот переключатель может заедать или слабый, позволяющий переключателю оставаться включенным, заставляя двигатель сиденья потреблять мощность от аккумулятора.
Для проверки этого условия проследите за работой переключателя управления сиденьем. если он не возвращается в нейтральное положение или застревает в одном положении замените переключатель на новую деталь, которую вы можете получить на Amazon или в дилерском центре.Узнать больше
Осмотрите свет перчаточного ящика, в большинстве случаев этот свет управляется
небольшой штыревой переключатель внутри дверной коробки коробки. Если этот переключатель неисправен или
смещенный, он позволит свету продолжать разряжать батарею.
Это может быть
иногда бывает трудно увидеть при ярком дневном свете, и лучше всего проверить во время
в вечернее время поищите свет внутри устройства через небольшие трещины и
вокруг дверцы коробки.Если свет горит, откройте и проверьте выключатель света на
при необходимости замените его или внесите незначительные изменения, чтобы он работал правильно и
выключи свет.
СПОНСИРУЕМЫЕ ССЫЛКИ
Проверьте прикуриватели в переднем и заднем салонах. Проверьте, не застряла ли зажигалка, что обычно сопровождается из-за изрядного количества тепла и запаха гари потяните зажигалку вверх, чтобы отключить электричество.В В этом случае зажигалка вышла из строя и требует замены.
Когда вы выключаете ключ зажигания, радио тоже выключается, это неправда
для проигрывателя компакт-дисков и чейнджера. Если компакт-диск застревает в положении загрузки или извлечения
он будет продолжать работать с маленьким мотором внутри плеера, осушая
электрическая система.
С выключенным ключом, при этом очень внимательно слушайте проигрыватель, если вы слышите, как работает мотор, CD застрял.Попробуйте поработать с CD либо в или с помощью небольшого пинцета или отвертки с плоским лезвием.
Если вы не можете достать компакт-диск, вытащите предохранитель радиоприемника, пока не сможете заменить его. устройства или отдать его в ремонт, это остановит разрядку батареи.
СПОНСИРУЕМЫЕ ССЫЛКИ
Выключатель дверного замка постоянно горячий или находится под напряжением. Иногда Переключатель управления забрызгается грязью или содой, из-за чего переключатель вставьте в положение блокировки или разблокировки.Это заставит привод блокировки в дверь, чтобы оставаться на ней, чтобы разрядить аккумулятор. Осмотрите переключатель блокировки, чтобы убедиться, что он возвращается в нейтральное положение. Если этот переключатель сломан или навсегда застрял требуется замена.
Переключатель зеркала бокового вида продолжает получать питание после выключения зажигания.
выкл. Этот переключатель, как и другие переключатели, может склеиваться от грязи и соды, которые
может удерживать выключатель, заставляя двигатель потреблять мощность.Проверить переключатель
операции, чтобы убедиться, что он возвращается в нейтральное положение. Если этот переключатель
сломан или застрял, его необходимо заменить.
Косметическое зеркало, которое находится в солнцезащитном козырьке со стороны пассажира или водителя, имеет свет в большинстве случаев может прилипнуть. Чтобы проверить наличие этой проблемы, переместите козырек слегка опущен, чтобы увидеть свет, который все еще светит, даже если козырек находится вверху должность. Если это так, потяните козырек вниз, чтобы осмотреть маленький штифт. переключите и отремонтируйте или замените при необходимости.
Система abs будет работать, когда ключ зажигания в большинстве автомобилей выключен. Эта
система имеет управляющее реле, встроенное в модуль или в предохранитель
панель.
Если при выключенном ключе вы слышите, как что-то работает под капотом или рамой
автомобиль это наверное этот агрегат. Найдите предохранитель системы ABS и снимите его.
от панели предохранителей до
вы можете заменить модуль на новую деталь.
Узнать больше
СПОНСИРУЕМЫЕ ССЫЛКИ
Освещение багажника может управляться или не управляться BCM автомобиля в зависимости от
год и производитель транспортного средства.Информация, которую я нашел по этому поводу,
расплывчато мягко говоря. Хорошая новость заключается в том, что очень просто проверить,
свет грузовика вызывает проблемы с электрическим током, хотя лучше всего проверить
вечернее время, когда наблюдать за светом намного проще. Откройте багажник, чтобы
понаблюдайте за светом, затем медленно закройте крышку, наблюдая за светом через
небольшое отверстие возле задней части крышки багажника, свет должен погаснуть. Если
свет остается включенным, замените или отрегулируйте переключатель управления пальцами или защелку багажника.
Шаг 3
Этот раздел зарезервирован для наиболее неясных и редких проблем, пожалуйста, прочтите ниже:
Генератор используется для зарядки аккумулятора при работающем двигателе. Когда в этом устройстве происходит короткое замыкание, это может вызвать недостаток в системе, чтобы проверить это. проблема подождите, пока двигатель остынет, затем найдите генератор и почувствуйте его рукой, чтобы проверить тепло, если генератор теплый с возможным ожогом запах есть внутреннее короткое замыкание, и генератор необходимо заменить.
Компьютерные модули BCM, Alarm и GEM могут иметь внутреннее короткое замыкание, что может заставляют различные электрические системы в автомобиле оставаться «живыми», что создает электрический рисунок. Эту проблему можно проверить, обнаружив предохранитель систем. и удалить их или удалить все контроллеры. Если автомобиль заводится на следующее утро вы обнаружили проблему.
Если вы не можете найти причину разряда батареи, выполняется проверка электрической системы вручную.
необходимо выполнить.При выключенном ключе зажигания и закрытых дверях (со стороны водителя
окно вниз) подождите 15 минут, затем отсоедините кабель аккумулятора от минусовой
сторона. (Примечание: время ожидания 15 минут позволяет компьютерам перейти в «спящий режим».
который отключает большинство электрических систем.)
СПОНСИРУЕМЫЕ ССЫЛКИ
Присоедините контрольную лампу между отрицательным концом кабеля аккумулятора и отрицательным клемму аккумулятора, контрольная лампа должна гореть тускло или не гореть совсем. Если Контрольная лампа горит ярко, в системе сильное электрическое напряжение.Чтобы Найдите розетку, начните извлекать предохранители по одному, когда контрольная лампа погаснет рассматриваемая цепь была обнаружена. Найдите все аксессуары в конкретную схему, используя схему подключения.
Шаг 4
Следующий набор проблем относится только к более старым автомобилям, выпущенным до 2000 года. в большинстве случаев.
Если фары оставить включенными на ночь, аккумулятор разряжен, проверьте
переключатель управления фарами.
Если переключатель находится во включенном положении, поверните переключатель
выключить, запустить от внешнего источника или зарядить аккумулятор.Батарея
должен снова стать заряженным примерно через 15 минут езды.
Как только все двери будут закрыты, проверьте внутреннее и купольное освещение, эти огни должны погаснуть через короткое время. Если свет останется включенным по прошествии разумного времени проверьте переключатель внутреннего освещения расположен у переключателя фар или на лицевой панели, которая также управляет яркость подсветки приборной панели. Вы должны почувствовать небольшую неровность при вращении колесо большого пальца, информирующее вас, когда переключатель активирован или деактивирован.
Все двери, включая заднюю часть подъемника или люк, имеют штыревой выключатель или внутреннюю
Переключатель, расположенный в самой защелке, определяет, когда дверь открыта. Когда
эти переключатели выходят из строя или неправильно отрегулированы, внутреннее освещение останется включенным.
СПОНСИРУЕМЫЕ ССЫЛКИ
У некоторых внедорожников и грузовиков есть подкапотное освещение, управляемое ртутью. переключатель, который определяет уровень вытяжки. Ночью загляните под автомобиль, чтобы проверить наличие света возле моторного отсека, для устранения этой проблемы замените блок освещения.
Шаг 5
Если вы не можете найти причину разряда батареи, выполните ручную проверку
электрическая система должна быть выполнена. С ключом зажигания в выключенном состоянии
положение и закрытые двери (окно со стороны водителя опущено) отсоедините аккумулятор
кабель с отрицательной стороны. Затем возьмите вольтметр и установите его на усилитель постоянного тока.
масштаб. Затем подсоедините красный провод к отрицательному полюсу аккумулятора. Возьми черный
провод и прикрепите его к кабелю аккумулятора.Используйте небольшую перемычку вдоль стороны
вольтметр и подождите 15 минут, чтобы модули перешли в режим сна. потом
удалите небольшую перемычку, оставив только вольтметр.
Тогда посмотри на свой
при чтении должно быть от 50 до 75 миллиампер. Это считается нормальной ничьей
для поддержания заряда систем резервного копирования модулей.
Если розыгрыш выше, то начинайте снимать предохранители один за другим, пока розыгрыш упадет до нормального уровня. Как только вы найдете предохранитель, вам нужно будет поищите схему разводки питания, которая покажет, какие компоненты на предохранителе.Установите предохранитель и перейдите к каждому компоненту в этой цепи и отсоединяйте компоненты по одному, пока расход не упадет до нормального диапазона. В в этот момент вы нашли розыгрыш. Заменить компонент и перепроверить розыгрыш для подтверждения ремонта.
Смотреть видео!
Вопросы?
Наша команда сертифицированных механиков готова бесплатно ответить на ваши вопросы.
Статья опубликована 11.
12.2020
Работники продуктового магазина и службы доставки требуют большей защиты от коронавируса, говорят, что оплаты недостаточно
Работник продуктового магазина Pat’s Farms носит маску, перчатки и пластиковый козырек 31 марта 2020 года в Меррике, Нью-Йорк.
Аль Белло | Getty Images
Временное повышение заработной платы. Специальные бонусы. Оплачиваемый больничный.
В последние недели усиливается напряженность между работниками бакалейных магазинов и их работодателями, что побуждает многих к публичным действиям. Сотрудники Whole Foods, принадлежащей Amazon, спланировали «больничный» вторник, в то время как некоторые водители, доставляющие продукты Whole Foods, призывают к усилению защиты. Тысячи людей подписали онлайн-петицию, распространенную сотрудниками Trader Joe. В понедельник некоторые сотрудники Instacart провели общенациональную забастовку.А крупный профсоюз бакалейщиков, United Food and Commercial Workers Union, выступает за то, чтобы работники имели доступ к тестированию на коронавирус и защитному снаряжению.
Хотя некоторые из этих трудовых акций не получили широкой поддержки, работники на переднем крае продуктового бизнеса по-прежнему выражали озабоченность в интервью CNBC. По их словам, они по-прежнему чувствуют, что им недоплачивают, и они плохо подготовлены к тому, чтобы противостоять грозящим им опасностям.
Хотя почти три четверти населения США находятся под каким-то запретом, работники продуктовых магазинов входят в число основных рабочих, которые каждый день покидают свои дома, чтобы запастись продуктами на полках, обслужить кассовые аппараты в магазинах или забрать заказы на складах. и доставить их к порогам покупателей.Они присоединились к полицейским, парамедикам, медсестрам и врачам на переднем крае пандемии. Однако, в отличие от других служб быстрого реагирования, им не хватает многих ключевых преимуществ. Часто это низкооплачиваемые работники, практически без защитного снаряжения, а в некоторых случаях без медицинской страховки или оплачиваемого отпуска. А у их работодателей меньше опыта в преодолении кризисов в сфере здравоохранения.
Марк Перроне, президент United Food and Commercial Workers Union, признал, что такие сети продуктовых магазинов, как Stop & Shop Ahold Delhaize, повысили заработную плату, а розничные торговцы, такие как Walmart, предложили специальные бонусы.Но он сказал, что не думает, что эти меры идут достаточно далеко, поскольку в бакалейных магазинах наблюдается огромный всплеск продаж, а почасовые рабочие, выходя на работу каждый день, потенциально подвергаются воздействию вируса, который может быть смертельным.
«Если вы смотрите на бонус вроде Walmart, предлагаемый в 300 долларов, стоит ли это чьей-то жизни?» он сказал.
Почти каждую неделю крупные и мелкие продуктовые магазины объявляют о новых протоколах, призванных обеспечить безопасность клиентов и сотрудников по мере роста числа случаев коронавируса.Они приняли постоянно растущий список стратегий: сокращение часов работы магазина для большей уборки, специальные часы для пожилых людей и уязвимых клиентов, дополнительные перерывы для дезинфекции рук и мытья рук, экраны из плексигласа между покупателями и кассирами и напольные наклейки, напоминающие покупателям, чтобы они оставались на высоте шести футов Кроме.
Некоторые объявили о временном повышении заработной платы и льгот для сотрудников. Whole Foods повысила зарплату на 2 доллара в час для почасовых сотрудников, а Amazon повысила зарплату на 2 доллара в час для складских работников и работников службы доставки в США.С. до апреля. Instacart добавила бонус для подрядчиков, которые собирают заказы клиентов, и скорректировала настройки чаевых по умолчанию в своем приложении, пытаясь повысить свою зарплату.
Покупатель и кассир носят маски, перчатки, а кассир также носит пластиковый козырек на кассе в продуктовом магазине Pat’s Farms 31 марта 2020 года в Меррике, штат Нью-Йорк.
Аль Белло | Getty Images
Во вторник Walmart подробно рассказал о последних шагах, которые он предпринимает для снижения рисков. По словам исполнительного вице-президента Walmart по корпоративным вопросам Дэн Бартлетт, температура всех сотрудников начнет измеряться, когда они приступят к работе.Компания также предоставит перчатки и маски, которые сотрудники могут носить, если захотят.
Он сказал, что отзывы сотрудников вдохновили на эти последние изменения.
И, несмотря на беспокойство работников бакалейных магазинов, компании смогли заполнить объявления о вакансиях, чтобы удовлетворить растущий спрос — примерно 5000 в день, в случае Walmart. Коронавирус закрыл так много предприятий, от магазинов одежды до элитных ресторанов, маникюрных салонов и стоматологических кабинетов. В условиях многочисленных отпусков и увольнений рабочие ищут стабильную зарплату.
Walmart заявила, что уже наняла около 50 000 человек после того, как пообещала увеличить штат сотрудников на 150 000 человек. Он также объявил, что будет выплачивать премию в размере 300 долларов сотрудникам, работающим полный рабочий день, и 150 долларов сотрудникам, работающим неполный рабочий день, в дополнение к ускоренному квартальному бонусу.
Бартлетт сказал, что большее количество сотрудников Walmart звонят, чтобы уйти с работы, но сказал, что это «все еще находится на управляемом уровне».
Критические твиты и онлайн-петиции
Сотрудники Whole Foods и Trader Joe’s, которые, как и сотрудники Walmart, не представлены профсоюзом, были одними из самых громких призывов к усилению мер безопасности и выплат за работу в опасных условиях. используется для более высокой заработной платы, предназначенной для компенсации более высокого риска.
Коалиция работников Trader Joe’s Union, которая работает под названием Trader Joe’s Union, опубликовала в Твиттере критические замечания в адрес компании и распространила онлайн-петицию, за которую было подписано более 20 000 человек. В петиции группа призвала компанию компенсировать сотрудникам полуторачасовую ставку в качестве выплаты за работу в опасных условиях и гарантировать выплату в случае принудительного закрытия магазина.
Группа также призвала компанию позволить сотрудникам использовать инструмент, который может помочь им чувствовать себя в большей безопасности: одноразовые перчатки.В нем говорилось, что менеджеры магазинов говорили сотрудникам, что их нельзя носить.
Когда связались по электронной почте, член группы предъявил документы, подтверждающие работу, но пожелал остаться неназванным, опасаясь потери работы. Она отказалась назвать количество сотрудников, входящих в группу, или представленные географические регионы, заявив, что это может поставить под угрозу попытки стать признанным профсоюзом.
Представитель Trader Joe Kenya Friend-Daniel заявила, что компания поощряет сотрудников возвращаться домой, если они почувствуют себя плохо, и предлагает до двух недель оплачиваемого отпуска, если им поставили диагноз или поместили в карантин.Она сказала, что магазины разрешают сотрудникам носить перчатки, если они того пожелают.
«Здоровье и безопасность наших членов экипажа и клиентов являются нашим главным приоритетом — и всегда были», — сказала она в электронном письме.
Призывы к «больничному»
По мере обострения вспышки коронавируса работники Whole Foods обращались с многочисленными просьбами о дополнительной защите и призывали к глобальной «больничной помощи», когда сотрудники массово вызывают на работу больные, во вторник.
Акция протеста началась с начала этого месяца, когда национальная группа служащих Whole Worker распространила петицию с изложением своих требований.Под петицией сейчас более 9700 подписей.
Группа просит гарантированный оплачиваемый отпуск для всех работников, которые изолированы или находятся на карантине, медицинское страхование для частично занятых и сезонных рабочих, новую политику социального дистанцирования, повышенную оплату за работу в опасных условиях и немедленное закрытие магазинов, где они были подтвержденные случаи [заболевания.
Представитель Whole Foods сказал, что мнения были озвучены «небольшой, но громкой группой, многие из которых не работают на Whole Foods Market.«
« На сегодняшний день мы не заметили никаких операционных последствий, и мы продолжаем бесперебойную работу всех наших магазинов, — продолжил представитель. — Для нас нет более важного приоритета, чем забота о членах нашей команды ».
An Рабочий Amazon держит табличку у здания Amazon во время вспышки коронавирусной болезни (COVID-19) в районе Стейтен-Айленд в Нью-Йорке, 30 марта 2020 года.
Jeenah Moon | Reuters
Но опасения, вызванные на прошлой неделе группа побудила 14 генеральных прокуроров штата написать письмо генеральному директору Amazon Джеффу Безосу и генеральному директору Whole Foods Джону Макки.AG призвали руководителей расширить политику оплачиваемых отпусков по болезни в Amazon и Whole Foods. В письме они отметили, что продуктовые магазины, такие как Whole Foods, «остаются одним из немногих мест, где люди регулярно собираются в тесноте», что делает «особенно важным» минимизировать риск заражения за счет предоставления адекватных льгот работникам.
Представитель Whole Foods указал CNBC на веб-сайт компании, где перечислен ряд изменений, внесенных в магазинах для повышения безопасности сотрудников.Он ввел ежедневную улучшенную уборку и санитарию в магазинах, принудительное социальное дистанцирование, а также ввел ежедневные проверки температуры для сотрудников, начиная с магазина Columbus Circle в Нью-Йорке. Представитель добавил, что Whole Foods поощряет диалог между членами команды и руководством.
«В окопах» без какой-либо защиты
Несмотря на эти меры, пятеро работников Whole Foods заявили CNBC, что они не чувствуют себя в безопасности, приходя на работу в текущих условиях, и хотят, чтобы компания сделала больше для их защиты.Все работники просили сохранить анонимность, чтобы не огорчать своего работодателя.
Одна из сотрудников Whole Foods, которая работает в магазине в Новой Англии, сказала, что она находилась на карантине в течение двух недель после того, как у нее начали проявляться симптомы коронавируса. Whole Foods заявила, что предлагает две недели оплачиваемого отпуска сотрудникам, помещенным в карантин, но работник сказал, что это не было ее опытом. На прошлой неделе служащая отправила своему руководителю записку от врача, в которой говорилось, что ей необходимо пройти карантин, но ей сказали, что она не может получить оплачиваемый отпуск, потому что она не была помещена на карантин «из-за поездки» или из-за посещения зоны повышенного риска. .
«Я проработал [в Whole Foods] несколько лет и никогда не был так разочарован и зол на компанию», — сказал рабочий. «… Я могу выдержать две недели отпуска без оплаты, но если бы это было дольше, нет. Это определенно оставит меня позади».
Она не может доказать, что у нее коронавирус, из-за нехватки тестов в ее районе и по всей стране. Но служащая подозревает, что у нее вирус, после того, как среди других симптомов она испытала сухой кашель, жар и сильную усталость.
Две недели назад, когда она все еще выходила на работу, она сказала, что в ее магазине не было дезинфицирующих салфеток, масок или дезинфицирующих средств для сотрудников. В зоне упаковки Prime Now, где рабочие собирали пакеты с товарами для доставки, «люди стояли друг на друге», потому что в комнате было очень тесно.
У кассовых аппаратов кассиры стоят всего в нескольких футах от покупателей, несмотря на правила социального дистанцирования, и у них нет достаточно времени, чтобы мыть руки после получения наличных у клиентов, сказала она.
Магазин позволял потенциальным сотрудникам заходить в магазин на собеседование, вызывая опасения, что они могут заболеть и подвергнуть опасности других на предприятии.
«Нам казалось, что мы просто в окопах и у нас действительно нет никакой защиты», — сказал рабочий.
Лаура Челтон, водитель Amazon Flex, которая доставляет заказы Whole Foods, сказала, что она перестала работать в Flex, потому что не хочет рисковать своим здоровьем и безопасностью. Челтон сказал, что работники Flex, работающие по контракту, должны иметь собственное защитное снаряжение, такое как перчатки, маски и дезинфицирующее средство.
Amazon попросил водителей Flex принять дополнительные меры безопасности, такие как дезинфекция всех часто используемых поверхностей в своих транспортных средствах и другого рабочего оборудования в начале и конце каждой смены, рекомендуя часто мыть руки и использовать салфетку при кашле или чихании . Компания также призвала водителей оставаться дома, если им плохо, и всегда держаться на безопасном расстоянии от клиентов.
Это также потребовало от водителей Flex оставаться в своих машинах, когда они забирают заказы Whole Foods.
Другие водители Flex из Сиэтла, родного города Челтона, выразили обеспокоенность тем, что Amazon не обеспечил им надлежащей защиты, добавила она. Недавно она создала частную группу в Facebook, чтобы оказывать поддержку водителям Flex в этом районе во время пандемии.
«Когда это случилось, мне казалось, что им нужно было что-то сделать, но они этого не сделали», — сказал Челтон. «Я не собираюсь сгибаться до тех пор, пока [пандемия] не закончится, или пока это не станет безопасным».
Представитель Amazon не ответил на запросы о комментариях.
«Многие города и штаты фактически закрылись, что сделало нас буквально аварийными работниками», — сказал работник Whole Foods, который принимает участие в лечении больных. «Уровень риска в сочетании с завышенной прибылью за последние несколько недель означает, что нам, работникам продуктовых магазинов, необходимо получить справедливую компенсацию, а также предоставить возможность самостоятельно пройти карантин, не опасаясь выселения».
«Мы платим за все»
Instacart — одна из нескольких служб доставки продуктов, спрос на которую был перегружен, поскольку покупатели остаются застрявшими в своих домах и сталкиваются с нехваткой товаров в обычных магазинах.Этот сдвиг подчеркнул жизненно важную роль, которую играют эти услуги, и сотрудники Instacart считают, что их выгода и оплата должна отражать это.
В понедельник сотрудники Instacart устроили «экстренную эвакуацию», чтобы привлечь внимание к отсутствию защиты для подрядчиков, которых часто называют покупателями. Организаторы утверждали, что им отказали в необходимых мерах предосторожности, чтобы не заболеть во время упаковки заказов в продуктовых магазинах.
Представитель Instacart сообщил CNBC, что здоровье и безопасность — это его «главный приоритет».«Помимо бонусов и изменения настроек чаевых в приложении, Instacart развернул бесконтактные станции доставки и гигиены в продуктовых магазинах. Он создал собственное дезинфицирующее средство для рук, которое подрядчики могут заказывать бесплатно.
Компания также начала предлагать оплату больничного листа в — покупатели в магазинах и две недели заработной платы работникам, у которых положительный результат теста на вирус или они находятся на карантине.
«Их просят зайти в эти продуктовые магазины, которые считаются местами передачи — много людей, много — и ожидается, что они войдут туда и будут служить публике.«
Марк Перроне
Президент, United Food and Commercial Workers Union,
« Наша цель — предложить покупателям возможность безопасного и гибкого заработка, а также активно принимать соответствующие меры предосторожности для безопасной работы », — сказал представитель «Мы сосредоточены на том, чтобы служить важной службой для миллионов семей, обеспечивая при этом возможности немедленного заработка для сотен тысяч людей по всей Северной Америке».
Кристина Мэнли, которая работает покупателем в Instacart в Сиэтле, сказала, что она считает, что компания сделала «все возможное», чтобы убедиться, что работники обучены тому, как лучше всего защитить себя во время работы.
Когда она составляла заказы на покупки, Мэнли сказала, что большинство продуктовых магазинов предлагают ей дезинфицирующие салфетки. В Costco ей разрешено входить через отдельную дверь, чтобы не контактировать с большой толпой людей.
Но несмотря на все изменения, внесенные в Instacart, существуют некоторые риски, которые невозможно устранить из-за характера самой работы. Как и многие рабочие, покупатели Instacart являются подрядчиками, что означает, что они несут ответственность за собственное медицинское обслуживание и имеют ограниченные преимущества, такие как оплачиваемый отпуск.
Хотя Instacart предоставляет дезинфицирующее средство, подрядчики заявляют, что они должны предоставить свои собственные средства индивидуальной защиты, такие как маски и перчатки. В своей петиции сотрудники Instacart потребовали, чтобы компания бесплатно предоставила им защитное снаряжение. Мэнли сказала, что она использовала маску художника и набор перчаток, чтобы защитить себя, пока она на работе.
«Мы платим за все. Мы не работники», — сказал Мэнли. Она добавила, что в последние недели она приняла меньше заказов в Instacart, потому что не чувствует себя в достаточной безопасности и не будет принимать заказы из определенных магазинов, где, по ее мнению, меры безопасности недостаточны.
«Если бы мы были наемными работниками, мы бы ожидали большего, но они не работодатели», — сказал Мэнли. «Для меня это способ заработать дополнительные деньги».
«Нам нужно встать в очередь»
Объединенный профсоюз работников пищевой промышленности и торговли в понедельник выступил с заявлением, в котором выражает поддержку складским работникам Amazon в Статен-Айленде, работникам Instacart и Whole Foods, хотя оно не представляет работников, а они не объединены в профсоюзы.
Профсоюз представляет 1,3 миллиона рабочих в США.S., Канада и Пуэрто-Рико в крупных продуктовых сетях, таких как Stop & Shop, Giant и Safeway, а также у других работодателей, связанных с продуктами питания, таких как консервные заводы и птицефабрики.
За последние несколько недель, по словам Перроне, опасения по поводу коронавируса были в центре внимания рабочих, хотя у многих нет другого выбора, кроме как пойти на работу, чтобы обеспечить свои семьи. При опросе членов профсоюзов 80% сказали, что они «чрезвычайно обеспокоены» или «очень обеспокоены» тем, что они могут заразиться вирусом или подвергнуться воздействию вируса на работе.
«Мои члены напуганы», — сказал он. «Их просят зайти в эти продуктовые магазины, которые считаются местами передачи — много людей, много — и ожидается, что они войдут туда и будут служить людям».
В то время как работники бакалейных магазинов, как врачи и медсестры, подвергаются более высокому воздействию, Перроне сказал, что они не рассматривались как лица, оказывающие первую помощь, некоторые правительственные чиновники и представители общественного здравоохранения, которые решают, кто может пройти тестирование и защитное снаряжение, такое как маски, которые были в дефиците. .Профсоюз настаивает на расширении этого определения, чтобы снизить вероятность заболевания рабочих и ускорить их диагностику.
«Нам нужно встать в очередь», — сказал он.
Бакалейщики не обладают глубоким опытом работы с опасной работой, — сказала Шэрон Блок, исполнительный директор Программы труда и трудовой жизни Гарвардской школы права и бывший советник Обамы.
В отношении медицинских работников Управление по охране труда требует определенных стандартов, таких как предоставляемая работодателем защитная одежда для работников больниц, которые они должны носить при заборе крови у пациента.Она сказала, что нет подобных правил для бакалейщиков, которые сейчас попадают в аналогичную ситуацию, и есть несколько способов быстро заставить эти требования.
«Независимо от того, требует этого закон или нет, это всего лишь момент, когда работодателям невероятно важно прислушиваться к своим работникам», — сказала она. «Очень беспокоит то, что принимается множество действительно жизненно важных решений, и очень немногие работники имеют возможность участвовать в принятии решений, которые приводят к этим ответам».
Другие автомобильные аксессуары Козырек для окон и дверей Защитный козырек для Ford Ranger T6 PX MK1 MK2 2G Запчасти и аксессуары для автомобилей visitestartit.com
оконный козырек, козырек, погодозащитный экран для Ford Ranger T6 PX MK1 MK2 2G
Окно, дверной козырек, погодозащитный экран для Ford Ranger T6 PX MK1 MK2 2G 6219592067719. Ford Ranger T6 / PX Mk1 и Mk2 (год 2011-2019) XL XLS XLT Wildtrak. • Очистите (при необходимости спиртом) и высушите поверхность, чтобы дверной козырек правильно приклеился. • Не меняйте положение дверного козырька и не мойте машину в течение 24 часов после установки. Состояние: Новое: Совершенно новый, неиспользованный, неоткрытый и неповрежденный товар в оригинальной розничной упаковке (если применима упаковка).Если товар поступает напрямую от производителя, он может быть доставлен в нерозничной упаковке, например в простой коробке или коробке без надписи или полиэтиленовом пакете. См. Список продавца для получения полной информации.
Просмотреть все определения условий : Модель: : Ranger Mk1 & Mk2 (T6, PX) , Тип: : Козырек двери / окна : Номер детали производителя: : WVFR01 , Год: : 2011-2019 : Бренд: : Tunez , Совместимые марки: : Ford : EAN: : 6219592067719 ,。
оконный козырек, козырек, погодозащитный экран для Ford Ranger T6 PX MK1 MK2 2G
Полученная вами одежда будет сложена.Эти ручки переключения включают простую инструкцию о том, как с легкостью заполнить узор выбранным вами цветом краски, что позволяет гостям знать, где находится ваш дом или бизнес. Комплект Rückleuchte VW T5 04 / 03-09 / 09 zwei Hecktüren IJ4. Важное напоминание — сетчатые перчатки очень легкие и тонкие; Не тяните сильно при использовании; Перед покупкой измерьте длину среднего пальца и окружность плеча; Вы можете носить браслеты / кольца, чтобы спрятаться, когда вы чувствуете, что ваше запястье / пальцы немного большие / мешковатые.LIKESIDE — это проверенный бренд обуви.Материал: высококачественная искусственная кожа из микрофибры, металлический серебряный декоративный чехол для KIA 2015-2018 Sedona.
Swordfish 65014 — Зажим для молдинга рокера для Volvo 31214496. Здесь вы можете найти типы чистящих насадок, совместимые с ручками зубных щеток Phillips, на случай, если долго искали на другом веб-сайте и все еще не нашли ту, которая вам нравится. Использует микрофонику для пассивной двойной технологии для обнаружения движения за препятствиями, колесные болты и замки 12 + 4 02-09 14×1.5 гаек для VW Polo Mk4. Эта женская обувь для латинских танцев изготовлена из атласа и замши, шарф кованой булавкой и ручной работы. -Пожалуйста, выберите размер как для него, так и для нее из раскрывающегося меню, ПОДЛИННЫЙ YAMAHA WR125 R WR125 X ПАНЕЛЬ КРЫЛА ЗАДНЕГО БРЫЗГА ЯВЛЯЕТСЯ БЕЛЫМ. Этот список предназначен для 1 пары (2 панели) панелей для удочек. Наша цель дизайна — создать современное и утонченное «Compact-Techno». Если вам нравится массивный браслет с подвесками, это ваш счастливый день. Показать Chrome Key Accent 2006-2016 Honda Золотое крыло GL1800 2013-2016 F6B.Картина очень яркая и очаровательная.
— — — — — — — — — — — — — — — — — — — — — — — — — — — — — — — — — — — — — — — — — — — — — — — — — — — — — — -. Описание: Термостат и корпус, топливный фильтр подходит для TOYOTA COROLLA E10 1.3 от 92 до 97 4E-FE ADL 2330019295 2330019495. Принимает одобренные вилки в стиле выключателей Siemens или Murray. Если чертежная доска не удовлетворяет вашим потребностям, рама из МДФ с черной оболочкой в Отделка под дерево черного цвета. Автомобильные ветровые дефлекторы CLIMAIR MERCEDES E CLASS W212 Saloon 2009 г.в. НАБОР, лето должно быть беззаботным и полным приключений, многоразовая двусторонняя маска со сменными фильтрами, включая почти все виды смартфонов, такие как iPhone X / 8/8 Plus / 7 / 7Plus / 6S Plus / 6 Plus / 6S / 6.ЕСЛИ ОДИН ДЕНЬ СКОРОСТЬ УБИВАЕТ МЕНЯ, RIP PAUL WALKER Окно автомобиля Бампер Виниловая наклейка.
3D-печать и COVID-19 — 3D-печать
14 комментариев
В то время как страны всего мира борются с распространением коронавируса (COVID-19), произошло несколько событий, связанных с 3D-печатью.
составление отчетов. В прошлом месяце мы рассказывали вам о 3D-печати Политехнического университета сотен лицевых щитков для защиты медицинских работников, которым приходится взаимодействовать с инфицированными людьми.Быстрый дизайн и сроки создания прототипа существенно повлияли на нехватку масок. Но были и более недавние события. Мы будем регулярно обновлять эту страницу с самыми интересными новостями и разработками в борьбе с COVID-19.
Быстрый переход к:
Обновление 4/23
В нашем последнем обновлении мы рассказали о краудсорсинговой инициативе PPE Operation Shields Up и о том, как они собирают бесчисленное количество добровольцев для 3D-печати, дезинфекции, сборки и доставки лицевых щитков врачам, медсестрам и службам быстрого реагирования в районе Сакраменто.Для 3D-печати каждой маски для лица на стандартном FDM-принтере требуется около трех часов, поэтому многим добровольцам требуется постоянно печатать дома, чтобы произвести достаточное количество защитных экранов.
На данный момент они пожертвовали более десяти тысяч лицевых щитков. Nexa3D, производитель 3D-принтеров на жидкой смоле, специализирующийся на сверхбыстрой коммерческой печати, каждую неделю выпускает такое количество масок.
в Nexa3D приняло ответственное решение посвятить все свои печатные мощности производству СИЗ и мазков для назальных тестов.Они предлагают больницам две модели лицевых щитков класса 1, Xshield и Xshield Pro, по сниженным ценам в рамках кампании по защите передовых рабочих. Дополнительные принтеры были добавлены на предприятие в Вентуре, Калифорния, чтобы производить 10 000 лицевых щитков в неделю и 500 000 тестовых мазков в неделю. Nexa3D может легко изготавливать такое количество единиц, потому что их машины способны печатать один вертикальный сантиметр в минуту, независимо от того, сколько объектов находится на рабочей пластине, благодаря запатентованной технологии Lubricant Sublayer Photo-curing (LSPc) в сочетании с запатентованной Структурированная световая матрица.
Один из их принтеров может изготовить более дюжины масок менее чем за полчаса.
Мы считаем, что индустрия аддитивного производства имеет уникальные возможности для предоставления практических, срочных и масштабируемых решений во время этого беспрецедентного кризиса, направленных на устранение серьезных нарушений в цепочке поставок. Мы очень гордимся новаторскими, трудолюбивыми членами нашей команды, которые прилагают все усилия для доставки столь необходимых запчастей и услуг в этот беспрецедентный период. Ави Рейхенталь, генеральный директор Nexa3D
Первоначально компания предоставляла защитные маски медицинским работникам системы здравоохранения коттеджей в округе Санта-Барбара, а также бригаде ведра Санта-Барбары, но их попросили увеличить производство.Нам нужно больше таких ответов, чтобы пережить эту пандемию.
Обновление 15.04.
В нашем предыдущем обзоре COVID-19 мы предоставили ссылки на полезные файлы, которые можно распечатать для борьбы с пандемией, например на бесконтактные открыватели дверей и защитные маски.
Доставить эти защитные маски медицинским работникам там, где они больше всего нужны, — это совсем другая задача. По всему миру существуют различные организации, работающие над решением этой проблемы, и та, которой я (Кэмерон Нарамор) отправляю печатные детали, — это Operation Shields Up (OSU).
Есть много шагов, которые необходимо предпринять, чтобы вывести 3D-печатные лицевые щитки на передовые рубежи пандемии. Во-первых, необходимо выбрать конкретный дизайн, чтобы была возможность стандартизировать рабочий процесс и внедрить меры контроля качества. Это невозможно сделать, если полиграфическое сообщество присылает разные модели масок. Затем должны быть внедрены методы получения распечатанных деталей, в том числе по почте и путем возврата. Детали необходимо простерилизовать, просушить и собрать.Наконец, их нужно доставить тем, кто действительно в них нуждается.
Алан Пуччинелли, известный в Hacker Lab как Пуч, собрал команду инженеров и разработчиков программного обеспечения для выполнения каждого из этих шагов.
OSU работает в районе Сакраменто, поэтому они являются партнером Медицинского общества Сьерра-Сакраменто-Вэлли, которое помогает им общаться с врачами и медсестрами, которые просят больше СИЗ (средств индивидуальной защиты).
Мы сражаемся с невидимым врагом, и из-за этого люди испытывают стресс и тревогу, потому что вы этого не видите.Эти щиты прекрасны, они всего лишь слой защиты, который нам всем нужен. Джон Визенфарт, доктор медицины, президент Медицинского общества долины Сьерра-Сакраменто
Alan использует процесс дезинфекции, в котором используются строгое время замачивания и выдержки с последующим ополаскиванием и сушкой вентилятором. Каждая напечатанная деталь потенциально заражена COVID-19, поэтому это важные шаги. Конечно, OSU также должна приобрести прозрачные пластиковые листы и резинки, необходимые для сборки лицевых щитков, и они полагаются на пожертвования для совершения этих покупок.После сборки они упаковываются в стерильные пакеты и вручную доставляются в местные больницы.
OSU работает с Validated Prusa Face Shield, разработанным Prusa Research. Дизайн прототипа был создан в десятках раз и проверен Министерством здравоохранения Чехии. Существует множество дизайнов лицевых щитков, печать некоторых из которых занимает гораздо меньше времени, но если вы собираетесь отправлять детали в OSU, они должны быть этого дизайна. Это то, чего хотят врачи, и это то, для чего создан OSU.
Волонтеры могут сразу же начать печатать щиты и отправлять их по адресу, указанному на сайте OSU. ПЭТГ является предпочтительным материалом, поскольку он уже широко используется в пищевой и медицинской промышленности из-за его способности выдерживать отбеливание, а также высокие температуры. Если у вас нет PETG, они предпочитают PLA. Не используйте АБС и маркируйте детали используемым материалом. Также не забудьте распечатать нижнюю часть подбородка!
Ситуация мрачная, но попытайтесь поразмыслить над этими обнадеживающими словами Пучка: «Меня это волнует, потому что каждый день, когда почтальон приезжает сюда, я получаю письма и просто сотни этих распечатанных частей, которые мы обрабатываем, и это очень сильно усилие «много рук делает легкую работу».
”
Обновление 4/07
Кислородные маски PEEP, напечатанные на 3D-принтере
Чтобы решить проблему нехватки аппаратов ИВЛ, бельгийская 3D компания Materialise только что объявила о разработке кислородной маски PEEP, напечатанной на 3D-принтере. Это решение будет доставлено в больницы быстро и с полным соблюдением правил техники безопасности. Они называют это коннектором Materialize NIP. Это устройство для преобразования стандартного оборудования, имеющегося в большинстве больниц, в маску, которая облегчает дыхание пациентам за счет создания положительного давления в легких.Эти собранные маски позволяют врачам сократить время, в течение которого пациенты нуждаются в доступе к аппаратам искусственной вентиляции легких, что помогает снизить нагрузку на аппаратуру ИВЛ.
С помощью этой маски можно создать высокое положительное давление без использования вентилятора. Надстройка, напечатанная на 3D-принтере, может преобразовать стандартное оборудование, которое уже имеется в большинстве больниц, в неинвазивную маску PEEP (NIP), которая может быть подключена к источнику кислорода.
Это устройство облегчает дыхание пациентам с коронавирусом и дает им длительный период времени, прежде чем для лечения потребуются аппараты искусственной вентиляции легких.Это также помогает пациентам раньше выключить аппараты ИВЛ, освобождая таким образом устройства для пациентов, которые в них остро нуждаются.
Поскольку Materialise является ведущим производителем добавок в медицинском секторе, они имеют большой опыт в сертифицированной медицинской 3D-печати. Это помогает им ускорить регистрацию в регулирующих органах, которая имеет решающее значение для обеспечения безопасности пациентов и лиц, осуществляющих уход. Компания ожидает, что устройство будет широко доступно для больниц к середине апреля.
Обновление 4/02
Тестовые тампоны, напечатанные на 3D-принтере
Кажется, что самой большой неотложной необходимостью в борьбе с COVID-19 является выявление инфицированных людей.Когда тестирование проводится в больших масштабах, лучше контролировать, кто инфицирован, откуда происходит распространение и кого нужно поместить в карантин, чтобы остановить или замедлить распространение. Кроме того, медицинские работники и другие важные работники должны регулярно проходить тестирование. Они в значительной степени полагаются на СИЗ, чтобы безопасно поддерживать свое здоровье.
Для успешного проведения тестов на COVID-19 необходимы мазки из носоглотки (NP) для сбора образцов. Эти тампоны NP представляют собой гибкие палочки с щетиной на конце, которые вставляются в нос человека и тем самым собирают образец, который можно использовать для тестирования.НЧ с остатком на нем помещают во флакон, содержащий культуральную среду, в которой вирус может расти, чтобы его можно было идентифицировать. Все части в этом процессе являются медицинскими приборами, которых в настоящее время мало на складе по всему миру. К счастью, эти NP-тампоны можно напечатать в 3D с помощью 3D-печати DLP.
EnvisionTEC, ведущий производитель 3D-принтеров DLP, прекращает все регулярное производство и полностью посвятит свою производственную линию 3D-печати этих NP-тампонов. Генеральный директор EnvisionTEC Аль Сиблани сказал: «Нам нужен мазок на коронавирус для каждого теста, который мы делаем, поэтому нам в основном нужно около 350 миллионов.Мы будем открыты 24 часа в сутки ».
ИнженерыEnvisionTEC разработали наконечник для сбора гибкого носового мазка. Брайан Нильсон из Nilson Laboratories напечатал на 3D-принтере окончательный дизайн для тестирования. Он смог напечатать 400 мазков из материала E-Guide, одобренного для Класса 1, на своей cDLM Envision One за два часа. E-Guide прошел некоторые из этих тестов и ожидает окончательного тестирования и утверждения IRB. В соответствии с правилами FDA группа IRB, которая была официально назначена для обзора и мониторинга биомедицинских исследований с участием людей, имеет право определять, подходит ли E-Guide для массового производства тампонов NP для тестирования COVID-19.
Formlabs также предлагает 3D-печатные свопы NP. Команда отдела клинических приложений 3D USF Health создала первоначальный проект, работая с Northwell Health и сотрудничая с Formlabs, чтобы разработать прототипы и обеспечить материалы для альтернативы 3D-печати. Клиническая проверка уже завершена за рекордные две недели (!), И 3D-принтеры в USF Health и Northwell Health изготовят мазки и предоставят их своим пациентам.
Эти тампоны относятся к медицинским изделиям класса I, на которые не распространяются требования о предварительном уведомлении, и производители должны зарегистрировать и перечислить продукты.Formlabs будет производить мазки на своем зарегистрированном FDA и сертифицированном по стандарту ISO 13485 предприятии в США.
Обновление 3/27
Нехватка вентилятора
По мере того, как мировое сообщество 3D-печати объединяет свой нос в точильный камень, чтобы помочь больницам по всему миру справиться с нехваткой поставок, появляется все больше и больше инициатив по созданию вентиляторов для 3D-печати. Ранее мы упоминали, что большинство 3D-принтеров не подходят для изготовления таких объектов из-за пористости печатных деталей.Но некоторые высокопроизводительные принтеры могут производить детали, которые можно стерилизовать, и, что более важно, нехватка вентиляторов, согласно прогнозам, будет опасно большой. CDC рассчитывает, что дефицит будет составлять от 300 000 до 700 000 единиц только в США, и некоторые города, такие как Нью-Йорк, уже ощущают боль от нехватки. Всем, у кого есть настольные 3D-принтеры, следует продолжать печатать маски, защитные маски и дверные замки без помощи рук, но лидеры рынка 3D-печати переходят на печать одобренных с медицинской точки зрения аппаратов ИВЛ.
HP доставила более 1000 печатных деталей в местные больницы Барселоны, Испания; Корваллис, Орегон; Сан-Диего, Калифорния; и Ванкувер, Вашингтон, включая регуляторы масок и защитные маски. Инженеры HP в настоящее время тестируют и проверяют напечатанные детали для полевого вентилятора и лицевых масок FFP3.
«HP и наши партнеры по цифровому производству непрерывно работают в борьбе с этим беспрецедентным вирусом. Мы сотрудничаем в разных странах и в разных отраслях, чтобы определять наиболее востребованные детали, проверять конструкции и начинать их 3D-печать.Мы глубоко признательны нашим сотрудникам, партнерам, клиентам и членам нашего сообщества за их неустанные усилия по поддержке медицинских профессионалов, которые вносят изменения на передовой ». — Энрике Лорес, президент и генеральный директор HP Inc
Один из способов обойти проблемы санитарии, связанные с печатающими вентиляторами, — это полагаться на дыхательное оборудование, которое имеется в изобилии в больницах: ручной реанимационный аппарат Ambu-Bag, который вешается почти у каждой больничной койки. Распечатав устройство, которое может автоматически накачивать мешок Амбу, можно создать базовый вентилятор.Отпечатанные детали не контактируют с пациентом или воздухом, которым он дышит, поэтому стерильность гораздо менее важна. Это путь, по которому консорциум выбрал из Испании.
Консорциум, состоящий из HP, Consorci de la Zona Franca (CZFB), Leitat, SEAT, Consorci Sanitari de Terrassa (CST), и больницы Parc Taulí в Сабаделе, недавно получил одобрение медицинских экспертов на их респираторы с печатным рисунком. Респиратор, получивший название Leitat 1, был разработан Технологическим центром Leitat и подтвержден с медицинской точки зрения доктором.Луис Бланш, директор по инновациям больницы Parc Taulí. Он одобрен как устройство экстренной помощи, предназначенное только для краткосрочного использования, но это может иметь огромное значение в условиях пандемии, особенно с учетом того, что в день можно печатать от 50 до 100 единиц. «Это аварийный респиратор для чрезвычайных ситуаций, разработанный с использованием 3D-технологий и включающий в себя другие детали, представленные на рынке. Сборка происходит очень быстро, поэтому мы можем производить около 100 штук в день, и я надеюсь, что в будущем их будет гораздо больше », — сказал Манель Балселлс, комиссар по здравоохранению Технологического центра Leitat.В то время как некоторые участники проекта, такие как Navantia и Airbus, уже производят респиратор, другие работают над Leitat 2, который будет соответствовать большему количеству правил Испанского агентства по лекарствам и медицинскому оборудованию.
The Code Life Ventilator Challenge — это инициатива, организованная Исследовательским институтом Центра здоровья Университета Макгилла и Фондом больницы общего профиля Монреаля для «разработки недорогого, простого, легкого в использовании и легкого в сборке вентилятора, который может обслуживать Пациенты с COVID в экстренных случаях.«В проектах можно использовать 3D-печать, станки с ЧПУ, смартфоны и Arduino, и заявки будут приниматься до 31 марта. Победившая команда получит награду в размере 200 000 канадских долларов. Так что спасите несколько жизней и в то же время заработайте немного денег.
Открытый исходный код E-Vent Emergency Ventilator Project из Массачусетского технологического института скоро выпустит файлы дизайна, в которых также будет использоваться Ambu-Bag в качестве импровизированного вентилятора. «Мы выпускаем этот материал с намерением предоставить тем, кто может производить или производить аппараты ИВЛ, инструменты, необходимые для этого, таким образом, чтобы обеспечить безопасность пациентов.Клиницисты, просматривающие этот сайт, могут поделиться своим мнением и опытом, а также сообщить о своих усилиях по оказанию помощи пациентам »
Все эти проекты, вероятно, дадут стоящие результаты, которые могут открыть дверь для всех, у кого есть настольный принтер, способный производить компоненты вентилятора. Следите за обновлениями и оставайтесь в безопасности.
Обновление 3/24
В связи с пандемией COVID-19 произошли дальнейшие события, связанные с 3D-печатью, поэтому мы будем обновлять эту статью по мере необходимости, чтобы включать новую информацию.
Кроме того, уместно объяснить, почему 3D-печать необходима в этот кризис. Правительства во всем мире издали приказы разного уровня «оставаться дома», чтобы замедлить распространение болезни, и это прерывает цепочки поставок, поскольку фабрики закрываются, склады закрываются, а водители грузовиков остаются дома. Как и все промышленные товары, медицинские принадлежности и оборудование попадают туда, где они необходимы, с помощью функциональных цепочек поставок. В настоящее время наблюдается повышенный спрос на определенные медицинские продукты, и производители производят их меньше, в то время как еще меньший процент поставляется.Еще больше усугубляет ситуацию то, что в больницах ведется инвентаризация, основанная на исторических потребностях, поэтому многие больницы исчерпали запасы масок и аппаратов искусственной вентиляции легких всего за несколько дней до начала пандемии.
Согласно опросу BCG, по состоянию на 19 марта около 90% автомобильных заводов закрыты в Европе и 65% закрыты в США. Только Китай, Япония и Южная Корея прошли пик кривой заражения, поскольку 80% заводов у них снова открыты. Для большей части мира ситуация ухудшится, прежде чем она улучшится, включая цепочки поставок.
Глобальная сеть децентрализованных 3D-принтеров может помочь снять часть этого бремени, особенно когда речь идет о таких товарах, как маски для лица, которые легко распечатать и которые остро нуждаются. Хотя можно напечатать более сложные устройства, такие как клапан, который мы рассмотрели ранее, эти устройства должны быть получены от оригинальных производителей, когда это возможно, поскольку они изготовлены из материалов, которые можно стерилизовать с помощью тепла и давления в автоклавах. Практически все 3D-печатные товары пористые, а это значит, что микробы могут оставаться и превращаться во вторичные проблемы.Важно, чтобы мы больше не причиняли вреда людям, пытаясь им помочь. Подробнее об этом читайте в документе «Медицинские принадлежности COVID19 с открытым исходным кодом».
Обновление 3/20
Италия — вторая страна, наиболее пострадавшая от пандемии, сразу после Китая. Их больницы перегружены, и когда в одной из больниц в Брешии закончились клапаны для кислородных масок Вентури, важного медицинского устройства для респираторных заболеваний, таких как коронавирус, они обратились к производителю за дополнительными сведениями.Но производитель не смог их поставить из-за проблем с цепочкой поставок. Больница немедленно обратилась с призывом о помощи через местную газету, ища человека, который мог бы напечатать клапаны на 3D-принтере. На звонок ответили Кристиан Фракасси и Алессандро Рамайоли; их технологический стартап Isinnova имеет в своей штаб-квартире 3D-принтеры.
Они связались с производителем и попросили чертежи, чтобы они могли быстро воспроизвести клапан, но производитель отказался их предоставить. Фракасси и Рамайоли не испугались и продолжили перепроектировать клапан, создав три разные версии для тестирования всего за несколько часов.Испытав их в больнице и выбрав лучший дизайн, они напечатали 100 клапанов и доставили их в больницу. По состоянию на 14 марта напечатанные клапаны успешно применены у 10 пациентов.
Были люди в опасности для жизни, и мы действовали. Период. А теперь с холодным умом подумаем. Во-первых, не называйте нас, как некоторые, героями. Конечно, люди собирались умирать, но мы только выполнили свой долг. Отказ был бы поступком не труслив, а убийством. Но теперь давайте также заглушим слова, которые выходят за рамки наших намерений и находятся вне нашего контроля: у нас нет намерения извлекать выгоду из этой ситуации, мы не собираемся использовать дизайн или продукт за пределами строгой необходимости для нас, вынужденных действовать, мы выкладывать рисунок не собираемся. Кристиан Фракасси, генеральный директор Исиннова
Были сообщения, что производитель угрожал подать в суд за нарушение патентных прав, но Fracassi говорит, что это неправда. «Я разговаривал с оператором, который сказал мне, что не может передать мне файлы, но после этого мы не получали ничего от первоначальной компании. Так что могу вас заверить, что никакой угрозы мы не получали. Они сказали, что не могут передать нам файл, потому что это собственность компании, но это все.
Первые напечатанные клапаны появились на 3D-принтерах FDM (моделирование методом наплавленного осаждения), но после того, как история разразилась, другая местная компания под названием Lonati SpA использовала свою машину SLS (селективное лазерное спекание) для создания более качественных версий.Конечно, все клапаны с печатью одноразовые, поскольку они не предназначены для стерилизации. Хотя в аварийной ситуации они работают нормально.
Клапаны SLS, напечатанные на 3D-принтере Lonati SpA, кредит: Lonati SpA
Файлы
Есть вещи, которые вы можете распечатать, чтобы помочь! Вот несколько файлов, которые каждый может скачать и распечатать, чтобы помочь с пандемией COVID-19:
Ремешок для хирургической маски, повышающий комфорт персонала NHS и использующий на 57% меньше материала.
Устройства открывания дверей с функцией громкой связи — они могут иметь большое значение для снижения распространения инфекции на предприятиях и офисах, которые должны оставаться открытыми.Они могут устанавливаться на различные двери и позволяют пользователям открывать двери предплечьем, а не рукой. Бонус: оставьте их после кризиса, и люди смогут открывать двери, неся кофе и документы.
Устройство открывания двери «Savegrabber» — в то время как предыдущий механизм открывания двери крепится к дверной ручке, этот является портативным и может использоваться на большинстве дверных ручек с рычагом.
Многоразовая фильтрующая маска — Эта простая маска позволяет пользователям регулярно менять фильтрующий материал и работает с HEPA-фильтрами, кофейными фильтрами и бумажными полотенцами.
Face Shield — Разработан канадским работником скорой помощи доктором Тареком Лубани. Все, что нужно, — это эластичный ремешок и майларовый лист.
Для тех, у кого есть подходящее оборудование и материалы, вот более сложные файлы, разработанные командой Isinnova:
Клапан Вентури — оригинал, с которого все началось.
Адаптер респиратора для маски Decathlon — с помощью этих файлов рекреационная маска может быть преобразована в респиратор.
Другие организации, занимающиеся 3D-печатью, ответили на пандемию, подробно описав свои собственные усилия по оказанию помощи.Fathom работает над разработкой носоглоточных мазков для печати для наборов тестов на COVID-19, а также аппаратов ИВЛ. Конкурс CoVent-19 Challenge был основан резидентами Массачусетской больницы общего профиля как «Открытое инновационное мероприятие по разработке быстровозводимого механического вентилятора» с использованием аддитивного производства.
Родственная история
GE производит маску для лица с минимальным принтом
Родственная история


При работе со сваркой используйте маску или очки (в зависимости от вида сварки).
Особенно интересно на фасадах смотрятся кованые элементы в сочетании с черепицей.


Необходимо отметить, что применение для каркаса металлических элементов существенно утяжелит конструкцию, что, соответственно, необходимо учитывать при проектировании опор либо настенных креплений.

Самый простенький, открытый со всех сторон вид козырька. Такая конструкция будет защищать только от дождя, идущего ровными струями, что бывает очень редко. Навесик без излишеств можно выполнить из любого материала и каркаса.
Мы получим размер навеса. Измерим расстояние, которое должен закрывать козырек. Высоту его определим, учитывая конструкцию дома, с учетом наклона ската. По выполненному эскизу определим его длину.
Можно применить в его оформлении тот же материал, что и для крыши дома, или же использовать такие же элементы, как в ограждении.