Чертеж козырька над дверью – Как сделать козырек над входной дверью своими руками: пошаговая инструкция
Как сделать козырек над входной дверью своими руками: пошаговая инструкция
Навес над входом в строение, балконом или калиткой выполняет двойную роль. Он защищает проем от атмосферных факторов и является частью декора здания (или участка), даже считается чуть ли не его ключевой деталью. Но независимо от того, какую из функций собственник считает приоритетной, обязательно для дверного козырька придется выбирать наиболее приемлемые материалы и схему.

Существует множество инженерных решений, так как никакими нормативными документами (СНиП, ГОСТ) этот элемент фасада дома не регламентируется. А это позволяет не только составить свой, оригинальный чертеж, но и оптимизировать расходы. Определяясь, как сделать навес над дверью, чтобы он обладал максимальным функционалом и в то же время был украшением дома, следует придерживаться несложного алгоритма.
Составление схемы
Сложность изготовления и монтажа во многом зависит от вида козырька. Именно конфигурация его покрытия определяет, какие материалы для него целесообразнее использовать. Выбирая приемлемую форму и размеры, следует учитывать ряд моментов.
- Особенности климата. В первую очередь, насколько снежными бывают зимы в регионе. Наст (оледенение) создает значительную нагрузку, следовательно, устанавливая козырек, нужно обратить внимание на прочность конструкции.
- Расположение дома. Укрывают ли его другие объекты (лесополоса, смежные строения и так далее), имеет значение в плане ветровой нагрузки. Если роза ветров неблагоприятно скажется на устойчивости навеса, то следует выбирать схемы с низкой парусностью, а оригинальность, «эксклюзивность» козырька в этом случае должна отойти на второй план.
- Ремонтопригодность. К сожалению, мало кто задумывается над тем, что любая конструкция, расположенная вне строения, подвергается максимальному износу. Прежде чем сделать козырек над входной дверью, следует оценить, насколько сложно его будет приводить в порядок (реставрировать или заниматься ремонтом).
- Назначение навеса. Если требуется защитить от ненастья лишь дверь, то достаточно небольшого козырька. Более габаритные модели могут укрыть террасу, превратив ее в уютную беседку на входе; встречаются чертежи конструкций, которые тянутся от частного дома до калитки (гаража), образуя своеобразную крытую аллею.

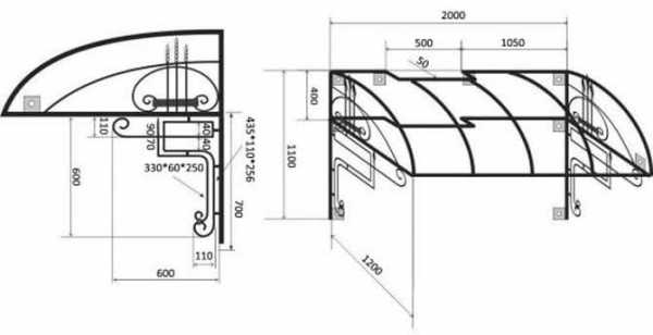
Размеры (в мм). При их определении стоит ориентироваться на следующие типовые рекомендации. По глубине козырек должен быть больше площадки не менее чем на 300, то есть полностью закрывать сверху нижнюю ступень. То же относится и к ширине; чтобы исключить попадание осадков на участок перед входом в дом сбоку, навес должен выступать за периметр косяка с каждой стороны на те же 300. Если дверь стандартных размеров, то ширина козырька варьируется в пределах 1250 – 1750, в зависимости от ее модели и специфики оформления входа.

Вид каркаса. Сделать козырек можно по одной из четырех схем: консольной подвесной, балочной, опорной или в виде своеобразной пристройки, смонтированной на отдельно стоящих столбах (независимая конструкция).

Форма навеса:
- односкатный вариант – самый простой козырек над дверью, изготовление которого не требует профессионализма;
- двускатные схемы – повышенная прочность навеса обеспечена. Если крыша дома имеет такой же вид, целесообразно остановиться на этой модификации козырька;
- арочные конструкции – преимущества в том, что они удачно вписываются в любую архитектуру и выдерживают значительные нагрузки. Снег на таком навесе не накапливается, а потому можно выбрать более «легкие» материалы;
- сферические, куполообразные козырьки – плюс в том, что они характеризуются хорошей обтекаемостью. При неблагоприятной розе ветров – одно из лучших решений;
- «пагоды» – их отличает изящество и оригинальность. Но с учетом интенсивности осадков в наших широтах и того, что они станут скапливаться на навесе, стоит лишний раз подумать, нужен ли такой козырек.
Иные варианты – не более чем модификации базовых конструкций.

Выбор материалов
Мнения специалистов по данному пункту разделяются. Одни считают, что следует ориентироваться на фасад дома, другие – на его кровлю, третьи – на оформление и форму крыльца. Но есть очевидные вещи, которые нельзя не учитывать.
Опорная конструкция
- Металл. Подходит для всех типов строений, обеспечивает максимальную надежность конструкции и пригоден к обшивке любыми материалами. Уход сложности не представляет; если нет антикоррозийного покрытия или сталь не категории «нержавейка», то достаточно регулярного окрашивания элементов.

- Древесина. Как правило, из нее изготовляются козырьки над дверью бревенчатого, брусового или каркасного дома, обшитого деревянной вагонкой. Нуждается в систематической пропитке и обработке спец/средствами. Если крыльцо на освещаемой стороне здания, о долговечности и речи нет – скручивание, растрескивание неминуемы.

- Кирпич. Для массивных козырьков и добротных домов – неплохое решение, особенно если стойки отделать декоративной плиткой. Но сложность возведения повышает и конечную стоимость работ. Повысить прочность можно закладкой в опоры металлического прутка, что является плюсом данного решения.

Кровля
Навес над входной дверью покрыть самостоятельно несложно следующими материалами.
- Поликарбонат. Преимуществ множество – небольшой вес, огромная палитра оттенков, выбор по размерам листов и толщине. Если имеет значение светозащищенность, то стоит ориентироваться на сотовую модификацию продукции.
- Профлист, оцинковка. Дешево, привлекательно, надежно. К тому же работать с листовым железом довольно просто – гнуть, кроить, обрабатывать.
- Шифер. Существенный минус – большая нагрузка. Придется обустраивать прочную опору. Да и вешний вид такого козырька сложно назвать презентабельным.
- Металлочерепица, мягкая кровля. И они имеют недостаток – придется монтировать сплошную обрешетку. А это, кроме дополнительной нагрузки, и повышенный расход материалов.
Из толстого стекла получаются великолепные входные козырьки. Но этот вариант – не для самостоятельного изготовления. А традиционные покрытия из рубероида, толи, пленки подходят разве только что для дачного домика, и то, не каждого.

Установка каркаса
Монтаж ведется в зависимости от выбранной схемы козырька. Но общий порядок действий однотипный.
- Крепление стоек. Для металлических каркасов лучше выбирать профильную трубу, со стороной порядка 40 мм. К ней легко крепить любой настил болтами или саморезами. Если конструкция требует усиления, несложно смонтировать и обрешетку. Но фиксация опорных элементов на стене – только анкерами.
После установки каркасной части навеса производится ее зачистка (при необходимости) и обработка растворителем. Перед окрашиванием металл козырька покрывается слоем грунтовки.
- Обшивка навеса. Специфика крепления листовых материалов в том, что обязательно под головки крепежа, даже если они и большие, подкладываются шайбы. Затяжка метизов делается не до конца, чтобы избежать прогибов в профиле. Накрывая козырек над дверью своими руками поликарбонатом, стоит использовать специальные крепежные детали, в комплект которых входят термошайбы. Иначе температурная деформация листов приведет к их быстрому разрушению.

Различных идей и схем в интернете достаточно. Учитывая, что каких-либо жестких требований к козырькам на входе в здания нет, любой чертеж можно взять за основу и разработать собственный, индивидуальный проект. Главное – чтобы навес хорошо вписывался в дизайн дома, соответствовал назначению и был легко реализуем своими руками, без помощи профессионалов. Ну а кто не надеется на себя, сможет заказать навес в специализированной фирме.
bestdoor.guru
Конструкция козырька над входом
Каждый элемент постройки имеет свои требования, соблюдение которых обеспечивает безопасность жильцам. Их нарушение может привести к серьезным дефектам. Кроме того, подобная оплошность может испортить внешний вид здания.
Одна из основных частей входа постройки – козырек. Он не только защищает крыльцо и дверь от осадков, но и завершает облик фасада. Однако конструкция также имеет свои требования, соблюдение которых может значительно упростить и обезопасить жизнь жильцам и посетителям постройки.
Общие требования
Козырёк дома обрамляет дверной пролет, а значит – влияет на эстетику всего дома. Кроме эстетичного внешнего вида, устройство должно отвечать следующим требованиям:
- Безопасность. К козырькам предъявляются определенные нормы, прописанные в соответствующем СНиПе. При несоблюдении данных требований конструкция рухнет от ветра или избыточных осадков. Особый контроль при монтаже козырька уделяют его наклону.
- Прочность. Очень часто домовладельцы обустраивают над входами тонкие, скорее декоративные козырьки, делать подобные надстройки не рекомендуется. Устройство следует монтировать из долговечных, а главное, прочных материалов, которые выдержат экстремальные условия окружающей среды. Во многом жесткость конструкции обеспечивается качественным и прочным крепежом.
- Конструкция. Само строение козырька играет решающую роль в его долговечности и прочности. Он должен быть значительно шире входной двери, чтобы закрывать дверь от косого ветра и осадков. Ширина козырька зависит от строения фасада, обычно его глубину делают от одного до полутора метров.
Помимо крепежей и полотнища, конструкцию дополняют сточной системой. Вода должна стекать не на землю, а в сосуд или ливневую канаву. Чтобы конструкция работала нужно соблюдать угол уклона и поворот составных элементов.
Обязательные нормы
Кроме обобщенных характеристик, строители при создании козырьков пользуются следующими инструкциями:
- Полотнище козырька должно быть устойчиво и к температурным перепадам, и к осадкам, а главное – к порывам ветра.
- Дизайн конструкции выбирают исходя из общей архитектуры фасада. Также и уклон разрабатывается с учетом стилистики здания.
- Для крепежей подходят только специальные элементы для наружных работ, обычные соединения попросту не выдержат сильных ветровых нагрузок.
При соблюдении вышеописанных норм, вы сможете соорудить качественный и прочный козырек, который станет изящным дополнением фасада и прослужит вам ни один десяток лет.
Требования к сборке
При создании козырька важны все этапы, но решающий среди них – создание и сборка. Если во время монтажа или создания чертежей будут сделаны недочеты, всю работу придется делать заново. Процесс создания козырька включает в себя следующие этапы:
- Проектирование. За основу можно взять проект дома или только фасада и исходя из его особенностей строить схему козырька. Его размер должен на 20-30 см выходить за пределы дверного проема. На чертеже козырька над входом помещения указывают все габариты полотнища и крепежей козырька.
- Сборка. Сначала нарезают материал для полотна по размерам чертежа (если конструкция из металла – срезы шлифуют, если из поликарбоната – закрывают заглушками от дождя). Далее арматуру, прутья или металлопрофиль нарезают для стоек и сваривают их между собой. Для сборных конструкций используют крепежи (болты, гайки и др.).
- Обработка. Данный этап гарантирует долгую сохранность металлических элементов навеса. Для защиты металла от ржавчины и коррозии сварочные швы и срезы шлифуют и покрывают антикоррозийными красками. Перед этим поверхность конструкции грунтуют материалом по металлу.
- Скрепление элементов. Когда все детали высохли – к ним можно крепить сам козырек. Отверстия для крепления обязательно обрабатываются против ржавчины.
- Установка. Для монтажа козырька в стене делают пазы перфоратором, в стойках конструкции делают отверстия соответствующего диаметра. После чего навес крепят над входным проемом. Подобные работы сподручнее выполнять вдвоем. Ровность козырька выверяют строительным уровнем (не сверяйте расположение козырька по уровню кладки или дверному косяку).
Работы выполняются в описанной последовательности, тогда конструкция будет отвечать всем требованиям СНиПа.
Обратите внимание! Особое внимание уделяют уклону козырька на общественном здании.
Советы по созданию чертежа
Козырек – на первый взгляд очень простая конструкция. Однако во время работы многие недочеты образуются сами собой. Чтобы такого не случалось обязательно стоит делать проектирование и чертеж, он позволит рассчитать уклон, размеры и другие параметры конструкции.
Сегодня сделать чертеж очень просто, можно даже взять за основу готовую схему. Для этого следует взять готовые чертежи и на их основе спроектировать подходящий козырек. Если вы не имеете базовых навыков проектирования, обратитесь в архитектурное бюро. Подобная услуга по цене доступна большинству потребителей.
Исходя из схемы, проще считать требуемые материалы и составлять смету. Даже схематичный набросок позволит вам избежать ненужных трат.
Типы козырьков
Существуют опорные и подвесные козырьки. Первый тип конструкции монтируется при помощи подвесных столбов, а второй – крепится на стену. Для опорных конструкций используют металл, для подвесных дерево, металл и другие материалы. Также козырьки могут иметь разную форму, по этому признаку их делят на:
- односкатные, верхней частью соединяющиеся со стеной;
- двухскатные, имеющие гребень и скаты, направленные по бокам от проема;
- арочные – оформляются полукругом;
- шатровые – представляют собой округлые навесы.
Стенки односкатных козырьков часто зашивают с обоих или с одной стороны для повышения ветрозащиты, для этой же цели монтируют перила.
Инструмент и материал для создания козырька.
Качественные материалы и инструменты – залог долговечной конструкции. Для легкой реализации чертежа потребуется:
- Кровельный материал. Обычно он совпадает с покрытием крыши самого здания или прилегающих построек. Одними из самых практичных материалов считаются поликарбонат и металлопрофиль. Однако если на вашем участке кровля из черепицы – используйте ее и на козырьке либо выбирайте другое покрытие в тон основному.
- Крепежи. Для скрепления труб и стоек между собой используют болты, анкеры или саморезы.
- Отделочные материалы. Чтобы защитить металл от коррозии используют грунтовку и эмаль по металлу.
- Сварочное оборудование. Надежнее всего соединить некоторые элементы каркаса сваркой.
- Болгарка, и дрель. Можно использовать как ручные, так и электрические инструменты.
- Кисточки или распылитель. Удобно наносить краску распылителем, если у вас нет такого агрегата используйте краску в баллоне или кисть.
- Индивидуальная защита. Работа с такими инструментами может привести к травмам или отравлению, поэтому обязательно защитите руки перчатками, а дыхательные пути респиратором. При работе со сваркой используйте маску или очки (в зависимости от вида сварки).
СНиПы для козырьков от 2009 и 2012 года
Требования к козырькам прописаны в документах от 2009 и 2012 года. Документ от 12 года включает в себя требования по монтажу конструкций на общественные постройки. Он предусматривает отсутствие водостока на одноэтажных зданиях с навесом. В этом же СНиПе говорится, что конструкция не может быть меньше 60 см.
Также в документе прописаны требования о том, что козырьки должны быть не только над дверным проемом, но и над балконом. Две конструкции на одном фасаде не запрещаются современными строительными нормами.
Зачастую домовладельцы обустраивают на домах металлические каркасы. Однако в СНиПе данное требование не прописано как основное. В целом металлическая конструкция имеет следующие преимущества:
- Эстетичный дизайн. Особенно интересно на фасадах смотрятся кованые элементы в сочетании с черепицей.
- Высокая устойчивость. Металл в качестве каркаса считается одним из самых прочных материалов, он выдержит большое количество осадков и сильные порывы ветра.
- Долговечность. При правильной обработке и регулярном обновлении защитного слоя конструкция устойчива к температурным перепадам и высокому уровню влажности.
Металлические каркасы для козырьков бывают сварными и кованными. И каждый из них имеет свои требования.
Обратите внимание! Для каркаса можно использовать и круглую и квадратную трубу.
К кованным изделиям предъявляется гораздо больше требований, нежели к сварным. Как правило, кованные изделия более сложны в изготовлении, и многие мастера при проектировании попросту не учитывают их функциональность и безопасность.
Особо строгих требований к навесам и козырькам не предъявляют, главное – соблюдать угол уклона. Помните, что для долговечной конструкции нужны качественные материалы. С таким набором вы сможете создать навес практически любой сложности и уклона.
Что еще почитать по теме?
Автор статьи:Сергей Новожилов — эксперт по кровельным материалам с 9-летним опытом практической работы в области инженерных решений в строительстве.
Понравилась статья? Поделись с друзьями в социальных сетях:Вконтакте
Одноклассники
Google+
proroofer.ru
Конструкция козырька
Стены и крыша любого жилого дома, этажностью от трех и более этажей, могут представлять угрозу жизни и здоровью людей. Наледи, сосульки, дождевая вода и даже куски штукатурки и кровельного материала, упавшие с высоты более полутора десятков метров, способны серьезно травмировать всех, кто в силу обстоятельств вынужден находиться в непосредственной близости к входу и стенам здания. По действующим нормам проектирования и строительства безопасность входа должна обеспечиваться защитным козырьком или навесом, принимающим на себя первый удар. Конструкции козырьков над входами должны выдерживать серьезную ветровую и ударную нагрузку, поэтому сооружение жестко регулируется требованиями СНиП.
Какой должна быть конструкция козырька по строительным нормам
Большинство жильцов воспринимают навес над входом в здание, над пандусом или крылечной площадкой не более как конструкцию для защиты от дождя и декоративный элемент. Нередко архитектурные и надзорные службы заставляют оборудовать козырьками открытые площадки кафе и торговых заведений, вызывая массу неудовольствия как со стороны жильцов вторых этажей, так и собственников торгующих точек. Но других способов обеспечить защиту, кроме как установить прочный козырек или навес, на сегодня еще не придумано.
Конструкция навеса в соответствии с нормами СНиП и Госстандарта должна удовлетворять следующим требованиям:
- Если для изготовления козырька над входом используются металлопрокат, технология сборки металлической конструкции должна соответствовать требованиям ГОСТ 23118, с учетом нанесений защитных покрытий и способа крепления;
- СНиП №№ 31-01-2003, 31-107-2004, определяющие решения и нормы при планировании многоэтажных домов, определяют требования по обустройству каждого входа и выхода из дома защитным навесом и козырьком.
Для малоэтажных зданий старой постройки, при отсутствии балконов и лоджий, достаточно устройства козырька над входом шириной до 0,6 м для защиты входной двери от дождя и снега.
Важно! Конструкция козырька, независимо от этажности здания, должна обеспечивать защиту не только двери, но и всей крыльцовой группы, включая площадку перед входом в помещение и ступени.
Большинство зданий, построенных более 40 лет назад, оборудованы переходными конструкциями козырьков, когда часть бетонной плиты перекрытия первого этажа дооборудовалась стальным каркасом, опорами и подкосами, удерживающими массивную металлическую раму козырька над входом в дом. За долгий срок эксплуатации металл сгнивает, и конструкция козырька приходит в негодность, поэтому жильцы вынуждены прибегать к строительству навеса за свой счет или даже своими руками, не соблюдая норм безопасности и подвергая свое здоровье риску получить травму.
Современные дома строятся в более жестких условиях. Увеличение этажности зданий, широкое распространение композиционных и полимерных материалов заставило архитекторов частично пересмотреть и дополнить существующие строительные нормы и правила:
- Согласно СНиП 2.08.02-89 любое крыльцо многоэтажного дома должно оборудоваться входной площадкой размерами 180х180 см. Крыльцовая площадка должна быть полностью защищена от дождя и снега;
- Конструкция козырька должна быть оборудована водоотводящим уклоном или иметь организованное водоотведение дождевой воды таким образом, чтобы ступеньки, площадка и часть отмостки фундамента, примыкающая к крылечной группе, не заливались отводящей водой;
- В соответствии с требованиями, предъявляемыми к прочности конструкции, кровельное покрытие и опоры должны выдерживать нагрузку 200 кг на квадратный метр кровли;
- В конструкции несущих элементов, особенно опор, подкосов и обрешетки не должно использоваться горючих элементов, а в случае применения полимерных материалов, клеев и покрытий, они быть иметь санитарно — гигиенический допуск к использованию в жилых помещениях.
Важно! Кроме того, не допускается выполнение ремонта старых козырьков и навесов, возрастом более 10 лет, переукладкой кровельного покрытия или частичной заменой элементов несущей металлической рамы.
Если старый козырек имеет следы глубокой коррозии поверхности на глубину более 2 мм, вся стальная конструкция козырька подлежит демонтажу и полной замене на новый навес. Допускается сохранение анкерных креплений, заделанных в бетонные стены, если болты и резьба не имеют следов коррозии.
Стоит ли ремонтировать навес, или лучше заменить его новым
Устройство козырька над входом еще задолго до того как будет построено здание, в ходе проектирования проходит экспертизу, как и любая другая конструкция входной группы дома. Используя чертеж козырька над входом, будут сделаны прочностные расчеты по несущей способности под ветровой и статической нагрузкой, определены прогибы и возможные последствия деформации конструкции.
Единственное, что не в состоянии архитектурная инспекция проконтролировать, – это качество металла, сборки и долговечность навеса. Примерно каждый четвертый козырек из-за неправильно выполненной снегозащиты деформируется, а иногда и разрушается под ударами снеговых шапок.
Для примера, вес одного квадратного метра снегового покрова, толщиной в 20 см, достигает 70-80 кг, но на карнизе крыши нередко скапливаются шапки по 40-60 см толщиной, а значит, вес снегового заряда, свалившегося на козырек, может достигать 150 кг и более. Если шапка свалится хотя бы с высоты 10 м, это будет означать двух-трехкратные ударные перегрузки до полутонны, поэтому козырьки под ударами гнутся, деформируются и ломаются.
Чаще всего выходят из строя консольно закрепленные конструкции, как на схеме.
Если в дополнение к собственному весу козырька добавится реклама или облицовка, как на фото, то в первую же снежную зиму конструкция может быть раздавлена снеговым зарядом.
Если по месту расположения навеса нет возможности усилить конструкцию дополнительными верхними треугольными фермами, цепными или тросовыми подвесами, то лучше всего дополнить конструкцию установкой вертикальных стоек из профилированной квадратной трубы.
Если же в вашем доме нет угрозы от схода снега, установлена организованная система водоотведения, и крыльцо занимает площадку не более одного метра шириной, то вместо тяжелого стального козырька можно установить простейшую конструкцию дождевого капельника, изображенного на чертеже.
Наиболее распространенные конструкции козырьков
Во многих случаях козырьки над входом в дом, учреждение или офис используют не только в качестве защиты от снега или дождя, но и как элемент рекламы или способ привлечь внимание. В этом случае конструкции могут достигать достаточно больших размеров, как на фото.
На навесе из поликарбоната, общей площадью около 7 м2, в зимнее время будет скапливаться снежный покров толщиной не менее 10-15 см, даже скругленная форма крыши с обоюдным наклоном не поможет избавиться от снега. Это значит, что минимальная нагрузка от веса снега на конструкцию козырька составит 400-450 кг, а максимальная до тонны и более, в результате анкерные крепления, забитые в облицовочный кирпич, через два-три года просто не выдержат и потеряют несущую способность. Поэтому, если нужен козырек с красивым вылетом и фигурной крышей, его нужно делать в одной композиции со всей крыльцовой группой, как на фото.
Большую часть конструкций козырьков, используемых для защиты крыльца или входной двери в помещение, можно разделить на несколько групп:
- Арочные консольные схемы;
- Беседочные навесы с дополнительными опорами;
- Подвесные конструкции.
Первый вариант навесов можно обозначить, как универсальные, они используются для защиты небольших крылечек, калиток и даже почтовых ящиков. Вторую группу конструкций беседочного типа применяют в качестве основной схемы построения крыльца для парадных входов в здание. Третью группу навесов используют в качестве защитных для вспомогательных и хозяйственных выходов из здания.
Консольные и подвесные навесы
В качестве примера наиболее яркой и интересной конструкции консольного козырька можно привести навес, изображенный на фото.
Легкая и прочная конструкция навеса изготовлена из стальной арматуры обычной сваркой. За счет использования прочной и относительно недорогой стали изготовление такого навеса обойдется в небольшие деньги, а при необходимости несущие элементы можно усилить дополнительной подваркой распорок или подкосов. Чертежи подобного навеса можно найти на странице или разработать своими руками.
Изгиб и направление уклона арки не имеет значения, при любой форме купола все равно придется сделать гидроизоляцию по стыку между стеной и кровельным покрытием. Отличие между консольными навесами заключается в способе крепления козырька на стену. В наиболее продуманных вариантах заказчики усиливают навес боковыми подкосами, часто выполненными в виде декоративных элементов.
Но зачастую от усиления козырьков отказываются, считая достаточным имеющейся прочности трех ферм. Обычно такие навесы используют для защиты оконных проемов от дождя.
Подвесные козырьки, по сути, являются относительно новым явлением в конструировании навесов. Подвесная система в виде штанг, цепей, тонких стальных тросов позволяет получить эффект парения навеса в воздухе. Это удобно для оборудования входов в торговые и офисные учреждения с большим количеством посетителей. В этом случае отсутствие в конструкции подкосов или опор не мешает движению.
С таким же успехом подвесные козырьки могут использоваться для защиты оконных проемов от солнца и дождя.
Беседочные козырьки
Наиболее сложная и дорогостоящая группа навесных конструкций используется для оборудования крыльцовых площадок высотных зданий и украшения фасадов частных домов. В основе козырька применяется стандартное решение, когда один край крепится с опорой на стену дома, а вылет крыши устанавливается на дополнительных опорах.
Чтобы обеспечить устойчивость конструкции выносных опор, их связывают между собой дополнительными фермами или усиливают с помощью стального ограждения. Такая конструкция козырька отличается высокой прочностью и надежностью, способна выдержать практически любой ветер и толщину снежного покрова.
Крышу для козырька изготавливают в виде арки из поликарбоната или плоской стеклянной крыши. Талую или дождевую воду отводят с боковых водосборных желобов, скрытых за продольными балками каркаса.
Заключение
Средний срок службы профессионально спроектированного и изготовленного козырька консольного типа составляет до 20 лет, для беседочной конструкции до 25-35 лет. Цена изготовления и установки арочного навеса может быть меньше беседочной конструкции в три-четыре раза. Если правильно рассчитать прочность и жесткость козырька и предусмотреть сервисное обслуживание, то, возможно, консольный тип будет более выгодным решением, чем металлоемкие беседочные навесы.
Отправить комментарий
2proraba.com
Козырек над входом из дерева своими руками + фото
Наличие навеса или козырька над входной дверью в помещение позволяет решить сразу две задачи – уменьшить затекание воды в щели дверного проема и защитить хозяев от непогоды. Даже небольшой козырек над входом может кардинально добавить владельцам позитивных эмоций и защитить вход в дом от дождя и снега. Понятно, когда вход в кирпичное здание традиционно строят в виде тяжелого навеса над крыльцом из металла и пластика, этого, прежде всего, требует оформление фасада дома. Для дачи или бани вполне реально построить козырек над входом из дерева своими руками. Тем более что изготовить такую конструкцию не сложнее, чем лавочку или столик. Главное, чтобы выглядел симпатично и обеспечивал надежную защиту от дождя.
Двухскатный или односкатный, что выбрать
При желании можно подобрать не менее десятка различных вариантов конструкций деревянного мини-навеса или козырька, и у каждого из них существуют свои достоинства и недостатки. Для деревянных построек выбирают преимущественно двухскатные и арочные конструкции.
Двухскатный козырек над входом, фото, выглядит достаточно эффектно, кроме того, такие конструкции лучше переносят ветровые и снеговые нагрузки.
Но, прежде чем браться за изготовление двухскатного деревянного козырка над входом своими руками, необходимо учесть несколько дополнительных факторов:
- Постройка такого деревянного навеса обычно требует столярных навыков и умения работать с древесиной;
- На изготовление даже самого простого двухскатного козырька уйдет не менее двух дней работы;
- Для постройки двухскатной конструкции потребуется вдвое больше пиломатериалов, крепежа и кровельного покрытия.
К сведению! Вес готового двухскатного козырька составляет не менее 25 кг, поэтому на дверной блок и стены будет создаваться дополнительная нагрузка.
Если дом или баня построены по щитовой технологии или из ОСБ плит, лутку на входе в помещение нужно будет дополнительно усиливать брусом во избежание деформации дверной рамы. Для брусовых и кирпичных построек деревянный козырек над входом можно крепить прямо на стену.
У односкатной конструкции есть свои преимущества:
- Простой односкатный деревянный козырек над входом строится за один рабочий день;
- Расход материалов и крепежа втрое ниже, чем у двухскатной конструкции;
- Упрощенная конструкция козырька позволяет изготовить защиту над входом в дом даже начинающему столяру.
Обычно односкатные конструкции в оформлении и внешнем виде проигрывают двухскатным, но, если проявить немного смекалки и выдумки, козырек можно сделать не менее симпатичным и удобным в пользовании. Кроме того, небольшой вес навеса из дерева дает возможность закрепить его над входом в дом буквально на четырех – шести саморезах.
Строим односкатный козырек своими руками
Один из наиболее популярных вариантов односкатного козырька из дерева представлен на рисунке.
Плоскость ската образована системой коротких стропил и обрешетки, уложенных на два поперечных бруса. Основу каркаса составляют две боковые стойки треугольной формы. Чтобы компенсировать вертикальную нагрузку и прочно удерживать козырек над входом в дом, консольные балки, удерживающие скат, усилены дугообразными подкосами из дерева.
Такой навес из дерева идеально сочетается с двухскатным скатом крыши, как бы являясь ее продолжением. По отзывам мастеров, приведенная схема козырька неплохо зарекомендовала себя на практике, но для изготовления потребуется определенный навык, опыт работы с деревом. Поэтому, если нужно построить защиту над входом за пару часов, наилучшим вариантом будет приведенный ниже простейший навес из металла и дерева.
Постройка простейшего односкатного козырька из дерева
Большинство простых навесов и защитных конструкций из дерева, построенных своими руками, страдают одним и тем же недостатком – невыразительностью внешнего вида. Проблемку можно решить, если сделать деревянный козырек над входом своими руками с дополнительными элементами, имитирующими резьбу по дереву.
Для постройки козырька потребуется:
- Влагостойкая фанера толщиной 15 мм и размерами 150х100 см;
- Вагонка из дерева или доска, размеры 120х10х2 см, в количестве 10 шт.;
- Лист оцинкованного железа, толщиной 0,8 мм и размерами 120х100 см.
Конструкция козырька представляет собой три поперечных балки, уложенные на вертикальные стойки из фанеры. Чтобы получить максимальный декоративный эффект, первоначально нужно придумать оригинальный эскиз узора, имитирующий резьбу по дереву, фото.
После окончательного оформления схемы рисунка электролобзиком вырезается контур узора. Резать фанеру намного хуже, чем обычное дерево, брус или доску. Чтобы зубья полотна не поднимали верхний слой, на линию реза можно наклеить пленку или скотч. Вырезанную стойку тщательно шлифуют наждачной шкуркой по дереву.
Чтобы избежать ошибок в размерах стойки или форме декора, вторую стойку лучше всего изготовить прямым копированием. Для этого достаточно закрепить первый экземпляр стойки на листе фанеры и использовать его в качестве шаблона. В результате получаются две резные стойки из дерева.
Чтобы усилить декоративный эффект, переднюю карнизную планку также вырезают с элементами резьбы по дереву. Поверхность ската и тыльная сторона козырька набивается отрезками фанеры, а для усиления жесткости устанавливается дополнительный центральный ригель. Так как большая часть силовых и несущих деталей изготавливается из фанеры, конструкция козырька собирается на саморезах по дереву, обеспечивающих отличную жесткость и максимальную прочность соединения.
Крепится козырек над входом любым доступным способом. Проще всего завернуть 4-6 саморезов в доски, набитые на тыльную сторону конструкции.
Прежде чем перейти к обустройству кровельного покрытия, дерево необходимо обработать акриловым или алкидным водостойким лаком. Козырек из дерева над входом будет частично защищен от дождевой воды, но из практики известно, что даже влагостойкая фанера и обработанное дерево плохо переносит увлажнение и солнечные лучи. Поэтому дополнительная обработка лаками и красками только увеличит стойкость конструкции.
В качестве кровельного материала используется оцинкованная тонколистовая сталь. По бокам и вдоль свеса нужно будет отогнуть желоба, глубиной 1,5-2 см, этого достаточно для сбора стекающего конденсата и талой воды. На задней части кровельного покрытия отгибают полосу шириной не менее 10 см для защиты зоны примыкания.
При установке козырька над входом полоску нужно будет отогнуть вверх и зафиксировать саморезами.
Простой вариант двухскатного козырька
Для изготовления двухскатного козырька из дерева используется деревянный брус 70х70 мм и 40х70 мм и сосновая вагонка. Выбор дерева и размера бруса обусловлен желанием избежать нежелательных операций врезки стропил в основание крыши. В качестве крепежа используются саморезы – «глухари» с головкой под шестигранник.
Двухскатный козырек представляет собой рамную конструкцию, состоящую из четырех частей:
- Г-образные стойки из дерева, с помощью которых вся конструкция козырька прочно удерживается над входом в дом;
- Рама или основание, удерживающее систему стропил;
- Стропильный каркас козырька;
- Кровельное покрытие, состоящее из обрешетки и битумной черепицы.
Для изготовления козырька из дерева потребуется шуруповерт с комплектом сверл и зенковок, дисковая отрезная пила, комплект саморезов и разметочный инструмент.
Изготовление крепления рамы
На первом этапе нужно будет изготовить две вертикальные опорные стойки козырька. Каждая стойка собирается из дерева, доски или бруса 70х40 мм из трех частей. Первоначально на стену дома необходимо закрепить вертикальные части Г-образных стоек. После выравнивания верхних торцов по высоте заготовки фиксируют саморезами, выравнивают по вертикали и крепят в нижней части.
Вторым этапом устанавливают горизонтальные балки и подкосы. Каждую балку и подкос первоначально прихватывают гвоздиками к вертикальной планке, закрепленной на стене дома. Только после выравнивания всех элементов стоек по горизонту подкосы пришиваются к горизонтальной и вертикальной части стойки глухарями.
Прежде чем приступить к установке стропил козырька, торцы балок соединяют дополнительной планкой, обеспечивающей жесткость всей конструкции из дерева.
Установка стропил козырька
Стропильный каркас состоит из трех пар стропил. Каждую пару вымеряют и собирают до начала установки козырька над входом. Большая часть жесткости стропильной конструкции из дерева обеспечивается за счет сплошной обрешетки и правильно установленных глухарей саморезов.
Прежде чем закрепить, каждую пару стропил выравнивают по отвесу и уровню. Это наиболее сложный и ответственный этап строительства. Чтобы обеспечить устойчивое положение стропил, приходится прибегать к небольшому усовершенствованию. Под опорную поверхность каждой стропильной ноги выкладывается треугольная подставка из дерева, фото.
Подставка дополнительно проклеивается любым клеем для работы с деревом. Далее дерево фиксируется струбциной, выполняется зенкование и сверление отверстия под саморез-глухарь. После вворачивания самореза головка оказывается полностью утопленной в дерево и не мешает дальнейшей набивке обрешетки.
После того как все пары стропил были зафиксированы на раме, последняя стропильная двойка дополнительно крепится к стене дома. Это обеспечивает надежное и безопасное удержание всей конструкции из дерева над входом в помещение.
Укладка кровли на скаты козырька
Для данной конструкции можно использовать практически любой вид кровли, принципиально не имеет значения, какого вида кровельный материал будет использоваться для защиты каркаса из дерева. Так как скаты и обрешетка забиваются вагонкой всплошную, то наиболее простым вариантом кровельного покрытия будет битумная черепица.
Вместо вагонки, для забивки крыши можно использовать любую шпунтованную доску. Чем меньше вес дерева и конструкции в целом, тем лучше. После первого слоя обрешетки на скаты козырька нашивается плита ОСБ, для защиты дерева укладывается гидроизоляционный материал, и можно крепить битумную черепицу.
Заключение
По признанию мастеров, работающих с козырьками и кровельными конструкциями, дерево наилучшим образом подходит для домашнего строительства своими руками. Стоимость деревянного навеса над входом в дом обойдется примерно втрое дешевле металлической конструкции. Если требуется козырек арочной или нестандартной формы, несущие балки из дерева можно заказать в столярной мастерской, а большую часть работ по сборке козырька выполнить самостоятельно.
Отправить комментарий
2proraba.com
Козырек над дверью, как сделать навес над входной группой в частном доме
Навес или козырек над дверью не является необходимой архитектурной деталью, но способен изменить экстерьер фасада любого здания. Кроме эстетических функций, навес призван защищать входную группу от неблагоприятных внешних факторов. Построить простую конструкцию можно и своими руками, важно правильно выбрать материал и модель козырька для своего дома.
Виды навесов
Формы и дизайн легких конструкций, защищающих крыльцо частного дома, офисного здания или магазина от осадков, отличаются разнообразием. Простейший навес может быть создан из единственного листа металлопрофиля или поликарбоната, а может закрывать большую площадь над террасой.

В зависимости от размеров и функций можно выделить:
- перголы, защищающие только от солнца;
- рамады и патио — длинные узкие галереи вдоль стены дома;
- козырьки небольшого размера;
- навесы на опорах.
Общий принцип возведения всех этих конструкций одинаков: козырек над дверью одной стороной закреплен на стене дома, а его свободная часть опирается на стойки. В зависимости от габаритов навеса есть 2 варианта установки опор:
- отдельно стоящие столбы;
- укосины, закрепленные на стене.
Роль последних часто играют декоративные элементы из металла или резные кницы из дерева. В подобных случаях декоративность опор совмещается с их функциональностью.
По конструкции несущего каркаса различают несколько разных вариантов:
- односкатные козырьки, состоящие из прямого или изогнутого полотнища кровли, наклоненного в едином направлении;
- двухскатные, которые имеют 2 плоскости, смыкающиеся в высшей точке конструкции;
- арочные, опирающиеся на дугообразные стропила;
- шатровые — полукруглые или многоугольные, у которых стропила соединены в центре;
- фасонные, состоящие из нескольких разновысоких скатов.
Разновидности материала
Каркас и кровлю, из которых будет собран козырек над дверью, хозяин выбирает по своему вкусу. В основе выбора лежит легкость обработки при самостоятельном изготовлении, доступность покупного изделия по цене или качество товара. В любом случае при выборе нужно учитывать и совместимость внешнего вида стандартного изделия с общим стилем фасада дома.
Дерево
Древесина лучше всего подходит для самостоятельного изготовления козырька. Материал легко обрабатывать, он прочен и имеет небольшой вес. Недостатком древесины является подверженность гниению. Это требует дополнительных расходов на защиту частей конструкции и обработку дерева противогрибковыми и антисептическими препаратами.

Деревянные навесы гармонично сочетаются с любым видом облицовки фасада. Практичный материал позволяет выполнить оформление конструкции в сдержанном или декоративном стиле. Чаще всего козырьки над дверью, сделанные из дерева, устанавливают на срубах из бруса или оцилиндрованного бревна, дополняя резными опорами и балясинами перил на крыльце.
Металлочерепица
Разновидность стальных листовых материалов — металлочерепица — представляет собой профилированный лист, имитирующий черепичный узор. В частном доме, крытом металлическим профилем, всегда имеются остатки этого кровельного материала.

Козырек над входной дверью лучше всего покрыть такой же металлочерепицей, что и само здание. Рифленый стальной лист, покрытый защитным полимерным составом и окрашенный в яркие цвета, служит хорошей кровлей для легкого навеса над крыльцом, а соответствие крыши большого дома и козырька создает гармоничную композицию, украшающую фасад дома.
Профнастил
В отличие от металлочерепицы, листы профнастила имеют большие размеры. Разные марки такого профиля имеют большую или меньшую прочность. Перед покупкой профнастила специально для изготовления навеса нужно обратить внимание на рекомендуемые нагрузки. При наличии такого материала навес над дверью можно сделать из цельного листа, что сокращает время, затраченное на работу.

При изготовлении каркаса для металлической кровли обрешетку выполняют с небольшим шагом (около 30 см). Это дает тонкому листу возможность противостоять давлению и выдерживать снеговую нагрузку.
Металл
Опору для монтажа козырька можно сделать не только из дерева, но и из металла. Чаще всего используют профтрубу квадратного сечения. На ее основе можно сделать простые кронштейны или изящные навесы для дверей, собранные из гнутых деталей. Металлическая опора хорошо подходит для кровли из пластика: тонкие детали пропускают много света и козырек получится воздушным и легким.

Изделия из металла подвержены коррозии. При выборе профтрубы или прутка для сборки навеса своими руками стоит сразу позаботиться о краске.
Поликарбонат
Красивый прозрачный кровельный материал отличается высокой прочностью и может противостоять воздействию внешних факторов. Он не гниет и не подвержен коррозии, не требует дополнительной обработки. Стандартная площадь листа позволяет избежать операций по резке и стыкованию частей. Для небольшого козырька используют 1 цельный лист.
Сотовый и монолитный поликарбонат хорошо гнется. Это свойство применяют, чтобы сделать арочный или шатровый навес над входной дверью. При правильной установке такой козырек практически не покрывается снегом: он скатывается по гладкой наклонной поверхности. Но угол наклона при этом должен быть больше 20°.
Кованый козырек
Кованые опорные конструкции — самые декоративные. Их популярность не иссякает, они всегда в моде. Кованое изделие, выполненное хорошим мастером, стоит недешево и является произведением искусства.

Бюджетный вариант — сварные кронштейны из гнутого прутка или профтрубы (холодная ковка). Несмотря на упрощенную технологию обработки металла, они могут быть такими же красивыми, как и выкованные вручную. При наличии специального оборудования и навыков сварки холоднокованый козырек можно смастерить самостоятельно.
Особенности изделия
Чтобы сделать козырек над входной дверью не только красивым, но и прочным, нужно учесть, что на небольшую конструкцию оказывает давление снеговая шапка, накапливающаяся в течение зимы. Ближе к весне может случиться и падение крупных сосулек с крыши на козырек. Летом на плоскость кровли действуют сильные ветры и ливни. Все эти нагрузки передаются от кровли на каркасную опору.
Крепление козырька нужно продумать так, чтобы он не упал при воздействии погодных факторов, и воплотить оптимальный вариант монтажа опор. Это можно сделать так:
- Легкая и прочная конструкция — с фронтальными опорами. Столбики можно установить только по углам прямоугольника, которые не закреплены на стене, но можно сделать и большее количество опор. Это зависит от размеров козырька и его очертаний. Фронтальные опоры ставят, если площадь кровли не превышает 4 м².
- Самая надежная и массивная — конструкция на 4 столбиках. В таком варианте опоры ставят не только под фронтальную сторону, но и возле стены. Дополнительные опоры позволяют навесу выдерживать большие нагрузки.
- Навес на кронштейнах удерживают опоры в виде треугольника. Стойки под передним выносом козырька опираются на стену на 30-50 см ниже горизонтальной балки. Это самая непрочная, но часто применяемая конструкция. Площадь такого навеса нельзя делать слишком большой: максимальные габариты — около 2 м².

Выбирая варианты крепления на вертикальных столбах, не следует забывать о надежности опоры. Вертикальные конструкции должны быть жестко закреплены. Они могут составлять единое целое с ограждением крыльца. Если оно отсутствует, то рекомендуется вкопать столбики в грунт на глубину не менее 50 см. Для опор большого навеса производят заливку столбчатого фундамента, в котором закреплены вертикальные стойки.
Плюсы и минусы использования
Установив навес над крыльцом, хозяин дома может обнаружить, что конструкция имеет не только достоинства. Козырек, который слишком велик и установлен близко к окну возле двери, затеняет прихожую. Чтобы этого не происходило, нужно правильно рассчитать высоту сооружения. Она не должна быть ниже, чем 50 см над верхней границей окна, если оно расположено рядом с дверью, и не выдаваться дальше, чем на 70 см от стены.

Если нужен козырек большого размера, следует учесть и то, что эти сооружения затеняют часть придомовой территории. Приступать к устройству крупной конструкции нужно после тщательного выбора места и определения количества инсоляции за ним. Это особенно важно учитывать, если тень падает на участок соседей по даче.
В остальном от использования козырька или навеса хозяин получает только преимущества:
- возможность выйти из дома и закрыть дверь, не вымокнув под дождем;
- избежать падения на обледеневшей площадке крыльца;
- использовать крытое крылечко, как невысокий балкон;
- под большими навесами можно отдохнуть и в жару, и проливной дождь;
- красивый навес придаст фасаду завершенность и шик, если выполнен качественно и сочетается по стилю с постройкой;
- легкая кровля играет важную роль, оберегая от осадков материалы крыльца.
Как сделать козырек над дверью?
Козырек на дверью можно сделать в виде простой односкатной конструкции:
- На стене дома укрепляют 2 параллельные балки для опоры. Расстояние от верхней до нижней зависит от желания сделать уклон большим или меньшим.
- Для навеса с фронтальныи опорами устанавливают столбики и вкапывают их в грунт. Соединяют столбы горизонтальным брусом.
- Между верхней частью столба и балками кладут горизонтальную обвязку (для жесткости) и наклонные стропила (для опоры кровли) расстояние между стропилами — 50-70 см. К стропилам крепят обрешетку.
- Кровлю крепят саморезами с пресс-шайбами.
Для установки козырька над дверью своими руками с креплением на укосины сначала нужно сбить из дерева или сварить из металла 2 прямоугольных треугольника. На этих кронштейнах будет держаться весь козырек, поэтому они должны быть прочными. Прикрепить опоры к стене на нужном расстоянии друг от друга, которое определит размеры конструкции.
Для опоры стропил нужно прикрепить к стене дополнительную балку. Устройство стропильной системы осуществить, как указано выше.

Для двухскатной или арочной конструкции делают 2-3 полукруглых или А-образных кровельных фермы. Соединить их надо в нижней части, у свободных концов, и в высших точках. Для соединения используют трубу или брусок, длина которого определяется выносом козырька от стены. Опоры для каркаса кровли сделать на столбах или кронштейнах, как указано выше. Кровельный материал монтировать по общим принципам.
Советы по монтажу

При сборке козырька над входной дверью своими руками часто возникают затруднения с выбором материала и проведением работ. Несколько полезных советов помогут сделать все правильно:
- Самое надежное крепление, которое применяют для установки кронштейнов, — анкера. Металлические распорные подойдут для бетонной и кирпичной стены, химические — для газобетона. На деревянную стену козырек крепят гвоздями не менее 15 см.
- Если для кровли дверного навеса используется мягкая черепица, обрешетка должна быть сплошной, из досок толщиной 2 см. Для металлопрофиля или поликарбоната допустимо расстояние около 50 см между ее элементами, т. к. эти материалы не прогибаются даже под весом снега. На арочных крышах ограничиваются фермами и соединительными брусками.
- При монтаже поликарбоната кровля должна иметь технологические зазоры между отдельными деталями (4-5 мм). Для защиты от проникновения осадков их закрывают специальным профилем. Края сотового поликарбоната нужно защитить кромочными элементами. Пленку с листов нужно снимать только после установки.
При самостоятельном изготовлении кованого каркаса на кронштейнах нужно начертить шаблон в виде прямоугольного треугольника. Декоративные элементы размещают так, чтобы ось нагрузки на укосину прошла через максимальное количество соединенных между собой деталей. Для опоры на стену лучше сделать уголок из профтрубы, на который и приварить элементы узора.
odveryah.ru
Как сделать козырек над крыльцом (навес) из металла своими руками
Навес и навесные конструкции
Когда над крыльцом нет кровли, оно постоянно подвергается воздействию осадков и солнечных лучей. Если с солнцем еще как-то можно мириться, то постоянно засыпанная снегом дверь является серьезной проблемой. Поэтому, чтобы не бороться со стихией, рекомендуем построить для крыльца прочную металлическую кровлю. Обо всех нюансах ее изготовления мы расскажем ниже.
1
Проектирование – определяемся с габаритами и дизайном
Прежде всего необходимо определиться, какой тип крыши требуется для вашего крыльца. В зависимости от конструкции каркаса крыша бывает двух видов:
- навес – представляет собой приставную конструкцию, которая с одной стороны крепится к стене, а с противоположной опирается на стойки;
- козырек – крепится только к стене, при этом противоположный край просто висит в воздухе, т.е. имеет консольную конструкцию.

Козырьки подходят для небольших крылец, так как их длина редко превышает 50-60 см. Делать длиннее не стоит, так как помимо собственного веса ему придется выдерживать снеговую нагрузку. Если требуется крыша для большого крыльца или, к примеру, террасы, необходимо сделать навес. Поэтому, чтобы определиться с типом конструкции, измеряем размер самого крыльца. Имейте в виду, что крыша над входной дверью действительно защищает крыльцо от осадков лишь в том случае, если ее габариты несколько больше размеров крыльца, т.е. необходимо обеспечить своего рода свесы с каждой стороны как минимум сантиметров на 25.
Определившись с размерами будущего навеса или козырька, подбираем тип конструкции крыши, которая может быть:
- односкатной;
- двускатной;
- арочной.
Чаще всего козырьки и навесы делают односкатными или дугообразными. В первом случае каркас представляет собой несколько соединенных между собой треугольников-кронштейнов, на которые укладывается кровельный материал. Если козырек арочный, делаем практически такой же каркас, но с дугообразной стропильной системой. Выбор формы крыши зависит исключительно от ваших предпочтений и, конечно, дизайна дома. Если, к примеру, дом оформлен в классическом стиле, а крыльцо декорировано балюстрадами, арочный вариант, покрытый поликарбонатом, будет смотреться не на своем месте. А вот односкатный навес может дополнительно украсить вход в такой дом.
Но вне зависимости от варианта конструкции, которую вы решили сделать, обязательно изобразите ее на бумаге и укажите размеры всех элементов. Простенький чертежик можно «набросать» даже от руки. Его наличие перед глазами значительно упростит вам работу.
Далее рассмотрим процесс изготовления навесов обоих типов.
2
Что понадобится для строительства – закупаем профиль и цемент
Как мы уже сказали выше, козырек будем делать из металла. Для его изготовления нам понадобятся следующие материалы:
- профилированные трубы сечением не менее 50х50 мм, можно использовать круглые трубы диаметром не менее 50 мм;
- профильная труба 20х20 мм;
- деревянные рейки;
- кровельный материал;
- материалы для приготовления – бетона цемент, щебень и песок.;
- краска по металлу.
В качестве кровельного материала желательно использовать такое же покрытие, которое используется для дома. К примеру, если основная крыша покрыта металлочерепицей, то абсолютно такую же металлочерепицу следует использовать и для козырька. В результате он будет смотреться наиболее гармонично. Исключением является поликарбонат, который можно использовать независимо от того, каким материалом покрыта основная крыша. Единственное, как мы уже сказали, поликарбонат подходит не для всех типов домов.
Если у вас нет сварочного аппарата, сделать каркас козырька можно при помощи специальных хомутов для профилей и болтов.

3
Строим односкатную кровлю – самый простой и быстрый способ
Прежде чем начать строительство навеса для крыльца, размечаем строительную площадку вокруг входа в дом. Нас интересуют наружные углы площадки – здесь мы выкапываем лунки глубиной 70-100 см. Дно лунок засыпаем щебнем или гравием сантиметров на 15-20. Затем устанавливаем в лунки столбы, выравниваем по их вертикали и заливаем бетоном марки М200. В таком положении опоры обязательно фиксируем растяжками или подпорками, пока не застынет бетон. Если ширина конструкции превышает 2 метра, устанавливаем дополнительные промежуточные опоры.

Пока застывает бетон, а на это требуется 28 суток при нормальных погодных условиях, переходим к изготовлению кронштейнов. Вначале свариваем уголки из двух отрезков труб под углом 90 градусов. Длина одной трубы должна ровняться длине (глубине) навеса, а длина второй трубы должна составлять сантиметров 25-30. Соединяем оба конца получившегося уголка еще одним отрезком трубы, который будет служить стропилом, в результате получаем прямоугольник. Делаем несколько таких кронштейнов с учетом того, что они будут располагаться с шагом 50-60 см.

Установленные столбы соединяем перемычкой. Далее напротив перемычки, т.е. в одной горизонтальной плоскости, прочерчиваем на стене уровень, на котором будет располагаться каркас. По намеченной линии выравниваем кронштейны и крепим к стене. Для этого вначале просверливаем отверстия в стойке кронштейна. Затем прикладываем своими руками кронштейн к стене, выравниваем по вертикали и относительно намеченной линии, после чего делаем пометки сквозь монтажные отверстия. Далее убираем в сторону кронштейн и просверливаем отверстия согласно меток. После этого прикладываем кронштейн к стене так, чтобы отверстия совпали, и фиксируем его дюбелями либо анкерами.
Все установленные кронштейны нужно связать горизонтальными балкими, которые привариваются над стойкой кронштейна и под ней, как показано на схеме выше. Верхняя балка должна располагаться заподлицо со стропилом. Этот момент необходимо учитывать при изготовлении кронштейнов. Балки тоже обязательно крепим к стене дюбелями или саморезами. Наружный край кронштейнов привариваем к перемычке, расположенной между опорами.
На этом наш каркас навеса готов. Теперь нужно выполнить обрешетку. Для этого крепим доски или бруски к стропилам болтами либо саморезами по металлу, предварительно просверлив в стропилах отверстия. Шаг реек должен составлять 200-300 мм.
Если вы хотите покрыть кровлю гибкой черепицей, на каркасе следует закрепить листы влагостойкой фанеры или ОСБ.
В завершение работы крепим кровельный материал к обрешетке саморезами или гвоздями. Эта процедура простая, выполняется по стандартной схеме, поэтому каких-либо пояснений не требует. Единственное, необходимо обеспечить герметичный стык кровельного материала со стеной. Используем специальную угловую планку примыкания. Для ее крепления штробим небольшую бороздку, в которую заводим верхний бортик планки. Саму планку крепим к стене дюбелями, а бороздку заполняем строительным герметиком. К кровельному материалу планка крепится саморезами.

Пространство между планкой и кровельным материалом заполняем специальным уплотнителем. Последний желательно подобрать индивидуально под профиль профнастила, металлочерепицы или другого кровельного покрытия. Если же подобрать профиль уплотнителя не удалось, следует использовать универсальную уплотнительную ленту.
Точно так же можно сделать деревянный навес из бруса. Единственное, опоры из дерева лучше не бетонировать, а закрепить поверх бетона, т.е. на поверхности земли при помощи специальных стаканов или других закладных крепежей.
Если кровля небольшая, как мы уже говорили, вы можете сделать ее по такой же схеме, но без двух опор. В результате у нас получится козырек. По завершении работы все металлические детали конструкции обязательно красим краской по металлу. Предварительно все сварные швы тщательно обрабатываем напильником, чтобы изделие смотрелось аккуратным.

4
Арочная кровля – интересная идея для любителей оригинальных решений
Если вы хотите, чтобы козырек над крыльцом смотрелся необычно. При этом был «легким», «воздушным», сделайте его арочным и покройте поликарбонатом – это полупрозрачный листовой материал, который хорошо гнется. Изготавливается конструкция достаточно просто — как и в предыдущем случае, размечаем площадку и устанавливаем на углах две опоры.

Затем изготавливаем из профилированных труб П-образную раму. Длина перемычки конструкции должна равняться ширине навеса, а две параллельные планки – длине кровли (глубине). Перемычку крепим к стене анкерами или дюбелями. При этом края параллельных планок привариваем к опорам, в результате П-образная рама должны быть установлена горизонтально. Если вы делаете козырек, к перемычке по краям нужно приварить две стойки длиной не менее 30-40 см и закрепить их на стене. Они повысят несущую способность конструкции.
В результате у нас получился каркас, к которому нужно приварить арочную стропильную систему. Для ее изготовления нам нужно сделать две дуги из отрезков труб, длина которых должна превышать ширину козырька. Чем длинее будут эти отрезки, тем меньше получится радиус сгиба. Согнуть трубы можно при помощи трубогиба. Если такого инструмента у вас нет, сделать трубогиб можно самостоятельно. Для этого нам понадобится большой лист фанеры или ОСБ. На нем рисуем дугу необходимого диаметра и вдоль разметки крепим крюки. Возле крайнего крюка делаем фиксатор – просто переворачиваем такой же крюк и крепим вверх тормашками. Затем вставляем трубу в фиксатор и изгибаем ее вдоль крюков.

Чтобы проще было согнуть профиль, его следует тщательно разогреть.
Существует еще один вариант получения дуг, который даже не требует трубогиба – берем трубу и делаем надрезы. Чем меньше диаметр изгиба, тем чаще должны располагаться надрезы. Затем изгибаем трубу руками и завариваем надрезы. Полученные дуги крепим к раме – одну между столбов, а вторую у стены. Между дуг крепим перемычки с шагом сантиметров 20-30. На этих перемычках фиксируем лист поликарбоната, который и придаст конструкции «воздушный» вид. Для монтажа покрытия используем саморезы.

На этом строительство завершено. Единственное, чтобы украсить конструкцию, делаем из металлического прута узоры и привариваем их к наружной трубе, как на фото выше. В завершение работу красим металлический каркас. Покраской желательно заниматься до установки поликарбоната.

Надо сказать, что существует еще один вариант изготовления арочного козырька. Его принцип аналогичен строительству односкатного навеса, единственное, стропила, т.е. гипотенуза кронштейнов-прямоугольников, делается не ровной, а дугообразной.
obustroen.ru
Козырек над дверью как сделать своими руками
Козырек в частном доме является визитной карточкой хозяина и к его выбору следует отнестись со всей серьезностью. Эта часть конструкции отлично защищает от осадков, но это является не единственной его функцией. Козырек – это декоративный элемент, который должен сочетаться с общим дизайном дома. Поэтому следует детально ознакомиться с материалами, из которого его изготавливают и с особенностями монтажа.

Применение
Козырек применяется над входными дверьми в качестве защитного устройства от дождя, снега, сосулек или пыли. Он производится разных форм и размеров: прямой, скошенный, полукруглый, маленький, большой. Небольшие козырьки способны укрыть хозяина от дождя во время замыкания дверей.
Но существуют и более функциональные – большие козырьки. Такие конструкции позволяют поставить возле дверей кресло для отдыха, где можно укрыться от ветра и пыли. Большие навесы могут быть закругленной формы и укрывать не только сверху, но и сбоку. Последний вариант актуально использовать на больших террасах.
Различные формы крыши над крыльцом
Для того чтобы определиться, какой тип козырька подобрать для своего дома, необходимо более детально ознакомиться с их типами. Самые распространенные козырьки:
- Односкатные.
- Двухскатные.
- Прямые.
- Купольные.
- Полуарочные.
- Вогнутые.
Односкатные и двухскатные зачастую применяются в домах, где имеется крыша такого же типа. Односкатные имеют сток воды с одной стороны. Прочность такой конструкции немного меньше, чем у двухскатных. Но односкатный тип отличается простотой установки.
Прямые можно использовать для выращивания на них цветов. Это позволяет озеленить экстерьер здания и придать ему необычный вид.
Для экономии материалов делаются крыши над крыльцом купольной формы. Такая форма актуальна для ветренных мест, ведь она более обтекаемая, чем козырьки с углами.
Еще одним экономичным вариантом крыши, является полуарочная. Такой козырек может выдерживать большие нагрузки во время выпадения большого количества снега.
Одной из необычных форм является вогнутая. Такой тип преображает экстерьер здания. Особая форма крыши не позволяет снегу задерживаться на ней.
Козырьки могут делаться открытыми или закрытыми. Первый вариант представляет собой навес над дверью, а второй включает в себя еще глухие стенки по бокам, которые защищают от ветра.
По способу монтажа существуют навесные, опорные и отдельно стоящие козырьки. Навесные используются в тех случаях, когда в качестве кровельного материала для козырька используются легкие материалы: поликарбонат, стекло, профнастил. Такой тип подходит в тех случаях, когда ограничено место для установки более громоздкой конструкции, ведь они крепятся только к стене.
Опорные козырьки более устойчивые и способны выдерживать большую нагрузку. Для опор используется прочный материал, например, алюминий.
Отдельно стоящие козырьки выполняют сразу несколько функций: навес над входной дверью, дополнительное помещение. Такая конструкция является продолжением дома и зачастую размещается под балконом. Но такой тип козырька делается на этапе строительства.
При выборе типа козырька необходимо руководствоваться общим дизайном здания: формой крыши дома, пристроек, типом ограждения. Козырек должен гармонично вписываться в общий вид здания.
Козырьки изготавливаются из разных материалов: дерева, поликарбоната, профнастила, пластика. Для выбора необходимого материала следует детально ознакомиться с каждым из них.
Козырек из дерева
Для производства деревянного козырька используются деревянные брусья с влагозащитной пропиткой. Если использовать необработанное дерево, то со временем оно испортится и козырек разрушится.

Деревянные брусья используются для изготовления рамы. В качестве кровельного материала применяются листы профнастила. Деревянный козырек идеально подходит для здания, которое полностью или частично обшито деревом. Такой тип козырька легко монтируется и обходится недорого по сравнению с остальными видами.
Кованые
Одним из необычных дизайнерских решений являются кованые козырьки. Это довольно сложная работа и требует больших трудозатрат. Такой вариант обойдется недешево владельцу, но это окупается красивым внешним видом.
Полностью кованый козырек обойдется дорого.
Но если использовать пару кованых элементов по бокам конструкции, то также можно получить необычный вариант. Кованые элементы отлично гармонируют с любыми кровельными материалами. Наиболее гармонично применять ковку с поликарбонатом или металлом.Из поликарбоната
Зачастую такой материал, как поликарбонат, идеально подходит в тех случаях, когда нужно облегчить козырек. Этот прозрачный материал отличается способностью равномерно распределять солнечный свет, за счет чего обеспечивается нормальный уровень освещенности.

Помимо этого, материал долговечен, ведь на нем не образовывается бактерии. Он не подвержен воздействию коррозии. Разнообразие оттенков поликарбоната позволяет подобрать необходимый материал, который идеально впишется в общий вид здания.
Козырек из поликарбоната является наиболее распространенным за счет его гибкости и способности принять любую форму.
Если делать полуарочный козырек из поликарбоната, то можно сократить материалы на изготовление конструкции. Поэтому следует более детально разобраться в возведении козырька из поликарбоната открытого навесного типа.Необходимые инструменты и материалы
Для возведения козырька понадобятся такие материалы:
- Поликарбонат.
- Стальные трубы для каркаса.
- Грунтовка.
- Наждачная бумага.
- Саморезы.
- Анкерные болты.
- Герметизирующая лента.
- Профиль U-образный.
Из инструментов для сборки конструкции потребуется:
- Карандаш.
- Болгарка.
- Рулетка.
- Шуруповерт.
- Строительный уровень.
- Сварочный аппарат.
После подготовки всего необходимого можно начинать монтаж козырька.
Как сделать козырек над дверью своими руками. Пошаговая инструкция
Монтаж козырька состоит из следующих этапов:
- Проектирования.
- Выполнения разметки.
- Сборки каркаса и его крепления к стене здания.
- Установки листов поликарбоната.
Проектирование заключается в прорисовке каркаса крыльца и обозначении места расположения козырька на стене. Это поможет избежать ошибок во время монтажа. Рассчитываются размеры козырька. Длина козырька – расстояние от стены здания, которая должна быть около 800 мм. При необходимости показатель можно увеличивать. Ширина – расстояние ширины двери с запасом 500 мм.

Козырек следует делать оптимальных размеров (длиной 800 мм, шириной 1500 мм, если ширина двери 1000 мм). При сооружении козырька меньших размеров под ним нельзя будет укрыться от дождя и ветра.
После определения размеров козырька можно начинать монтаж каркаса. Конструкция крепится на стену в готовом виде, поэтому ее следует собрать отдельно.
Состоит каркас из вертикальных элементов, которые прикручиваются к стене дома с обеих сторон от входной двери. К вертикальным привариваются горизонтальные. Размер которых равен ширине каркаса. К горизонтальным элементам привариваются дугообразные части, которые располагаются параллельно стене дома. Затем к дугам необходимо приварить прямые элементы – ребра жесткости, которые будут располагаться перпендикулярно к стене.
После сварки необходимо проверить конструкцию на надежность. Если некоторые элементы плохо закреплены и болтаются, то их нужно еще раз закрепить сваркой.
Места сварки следует обработать наждачной бумагой, что сделает их менее заметными.
Затем на каркасе сверлятся отверстия, через которые он крепится к стене дома сверху и снизу. Для увеличения надежности крепления выполняются в нескольких местах. Для этого применяются анкерные болты, которые обеспечивают надежный крепеж. Для крепления листов поликарбоната на каркасе используется U-образный профиль, который устанавливается на его торцах.
Готовый каркас следует покрыть слоем грунтовки, что защитит его в дальнейшем от коррозии. После этого начинается установка поликарбоната.
Листы поликарбоната следует подготовить: нарезать необходимого размера и наклеить на торцы герметизирующую ленту.
Сначала устанавливается первый лист и крепится не менее, чем на 40 мм от края. Если отступить от этой рекомендации, то лист может разрушится. Второй и последующие листы нельзя крепить впритык, иначе из-за перепада температур он может расшириться.
Завершающий этап – герметизация шва в месте примыкания каркаса к стене. После этого с поликарбоната снимается защитная пленка.
Советы профессионалов
Для того чтобы увеличить долговечность конструкции следует придерживаться советов профессионалов:
- Выполнять расчеты нагрузки, что позволит учесть не только собственный вес навеса, но и слой снега.
- Выполнять антикоррозионную защиту.
- Использовать качественные крепления, которые позволят надежно закрепить конструкцию.
- Правильно рассчитать размеры козырька, ведь недостаточные габариты плохо защищают от дождя и ветра.
Одним из вариантов установки необычного цветного козырька с кованой основой представлен в этом видео
Козырек для дома можно легко сделать своими руками. Большой выбор различных конструкций позволяет создать необычный навес, который станет красивым украшением здания. Среди козырьков различных типов, размеров и оттенков можно создать уникальную конструкцию, которая не один десяток лет будет радовать своего обладателя.
stroyobzor.info