Брежневка 3 комнатная планировка: описание проектов типовых 1-2-3-комнатных квартир, идеи дизайна комнат
Брежневка: планировка 3-комнатной квартиры: фото
Брежневкой называют жилой многоэтажный дом, этажность которого колеблется от девяти до семнадцати этажей. Они появились, сменив пятиэтажные хрущевки. Сначала их строили не выше девяти этажей, а потом они начали «расти» до двенадцати, шестнадцати и выше. Массово строить такие дома начали в 70-е и 80-е годы. Такие дома строились из разных материалов, в основном это были железобетонные панели, кирпич, блоки.
Панельная брежневка отличается от кирпичной глубиной подоконников и откосов. У панельной брежневки глубина подоконников составляет примерно 25-30 см, у кирпичной – 35-45 см. Блочные брежневки представляют собой башни с одним подъездом, в котором располагаются одно-, двух- и трехкомнатные квартиры. По сравнению с хрущевкой, брежневка считается более улучшенной квартирой. Планировка брежневки гораздо удобнее хрущовки, площадь комнат немного больше, кухни могут быть шести и даже семи-метровыми. Высота потолка стала достигать 2,7 м.
Планировка 3-х комнатных квартир в брежневских домах похожа на хрущевскую, но увеличилась площадь кухни, не стало проходных комнат. Часто комнаты выходят окнами на разные стороны здания. Общая площадь трехкомнатной квартиры составляет примерно 49-67 м2. Планировки брежневки хоть и удобнее хрущевки, но назвать ее комфортной вряд ли возможно. В кухне все так же не продумано расположение оборудования. Планировка 3-х комнатных квартир не предполагает большого санузла, в нем нет места для стиральной машины. Общепринятым стандартам удобства и функциональности такая квартира уже не соответствует.
Планировки квартир в брежневках.
Планировка брежневки практически не поддается изменению за счет несущих стен. Расширению за счет коридора поддаются только кухни и санузлы. Планировка трёхкомнатных квартир может быть изменена посредством объединения разных комнат.
Смотрите также советы архитекторов по выбору планировки:
3 х комнатная брежневка улучшенной планировки
Планировка 3 комнатной квартиры — лучшие проекты 2019-2019, зонирование и дизайн в едином стиле (105 фото)
Чтобы уяснить существенные отличия планировки квартир в современных монолитных железобетонных домах от планировки в панельном доме, сравним первые с квартирами «хрущевского» типа. Бесспорно, что бурно развивающееся строительство жилья оказало влияние на качество получаемых помещений.
В квартирах могли поселиться рядовые граждане и номенклатурные работники, причем планировка помещений для последних отличалась повышенным комфортом. Внутреннее убранство квартир госслужащих могло похвастаться просторным холлом и арочными проемами, в домах имелись помещения для прислуги.
3 х комнатная брежневка улучшенной планировки
СЕРИЯ МК-5 5-этажные кирпичные дома 1967-1977 г.г.
на площадке квартиры общая характеристика квартир
площадь кухни: 6,1 кв.м
санитарный узел: раздельный (в 1-комнатных — совмещенный)
высота потолков: 2,5 м
дополнительно: балконы, лоджии, встроенные шкафы, антресоли 1-комнатные 2-комнатные 3-комнатные
Название хронологически не совсем правильное, поскольку возводились такие дома и во времена строительства «хрущевок». Итак, это панельные дома, как правило, пятиэтажные, с плоской крышей, с виду похожие на перевернутые коробки из-под спичек.
Такими домами, за редким исключением, изобилует каждый район нашего города.
Типовые планировки квартир: брежневка, сталинка и хрущевка
Одной из разновидностей «брежневок» являются квартиры гостиничного типа. Они маленькие, их общая площадь составляет 12-18 квадратных метро. Предназначались такие квартиры для временного пребывания, но потом большинство из них было закреплено на постоянной основе.
«Сталинки» делятся на два вида в зависимости от используемого стройматериала: шлакоблочные и кирпичные. Большинство кирпичных домов было возведено в ранний период, а шлакоблочные начали появляться в то время, когда застройщики получили доступ к строительным панелям и блокам. Кирпичные здания обычно имеют лучшую теплоизоляцию, более привлекательный фасад. Дома из шлакоблока выглядят менее изысканно, а иногда и просто уныло.
Особенности планировки — брежневки
Планировка и размеры комнат зависят от серии дома. Высота потолков по сравнению с «хрущевками» увеличилась с 2,5 м до 2,7 м.
Архитекторы старались отказаться от неизолированных проходных комнат, оставив совмещенные санузлы только в однокомнатных квартирах. Данные улучшения значительно облегчили быт и повысили качество жизни. К сожалению, туалет и ванна остались по-прежнему очень тесными.
Пик строительства пришелся на 70-80 годы прошлого столетия. Новые дома создавались, в основном, из железобетонных плит, что позволяло ускорить процесс их возведения, улучшить звукоизоляцию. Несмотря на плюсы данного решения, в результате квартиры стали более холодными. Также имелась альтернатива – кирпич, поэтому некоторые серии домов строились без плит. Высота кирпичных «брежневок», как правило, достигала 16 этажей. Такие здания возводились в виде одно- или двухподъездных строений.
Планировка — брежневки: описание и типовые варианты
Остальные варианты перепланировки в обязательном порядке нужно согласовать в специальной инспекции, и во избежание ошибок лучше доверить это дело специалистам, которые знают все нюансы.
Лучше всего поддаются перепланировке квартиры с 3 комнатами, но даже с 2 и 1 комнатой перепланировка возможна:
Еще одним достоинством было то, что санузел стал раздельным. Совмещенным он остался только в некоторых однокомнатных квартирах. Несомненно, это стало большим плюсом. Высота потолков в «хрущевках» составляла примерно 2.4 метра, в «брежневках» стала 2.7 метра. Площадь лестничных пролетов тоже стала немного больше.
Планировка квартир в брежневских домах
Но спустя ещё несколько лет людям захотелось получить не только свои, но ещё и более просторные квартиры. К тому же усилился приток людей из деревень, где условия жизни были значительно хуже, чем в городах. Поэтому от строительства пятиэтажных зданий сразу перешли к возведению 8-9 и даже 12-16 этажных домов.
Единственный способ исправить это, который позволит планировка 2 комнатной брежневки, это объединение санузла. Разумеется, это может доставить определенные сложности, особенно если в квартире живет 3-4 человека.
Зато в результате вы получаете достаточно свободного места, чтобы установить нужную технику, экономя место на кухне и в то же время делая жизнь более комфортной.
Дизайн малогабаритной 3-комнатной квартиры 63 кв
Дизайн трехкомнатной квартиры в панельном доме предусматривает четыре отдельных помещения (гостиная, кухня, спальня и детская) пусть и небольшого размера. Дополнительно хозяевам хотелось иметь гардеробную, а также достаточное количество мест, куда можно убирать вещи.
Декоративная окраска стен, напоминающая грубую состаренную штукатурку, придает комнате дополнительное очарование и немного увеличивает ее визуально. Возле окна появилось рабочее место: широкая столешница возле стен переходит в открытые стеллажи для книг. Уютный мягкий диван можно разложить, превратив гостиную в спальню для гостей.
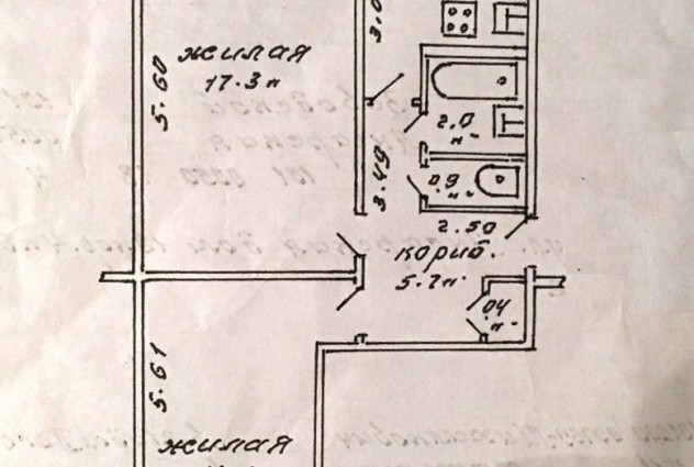
Перепланировка 3-х комнатной брежневки
Здравствуйте. Помогите, пожалуйста, с идеями перепланировки 3-х комнатной брежневки 62 метра. Проживаем вчетвером, двое разнополых детей.
Хочется, чтобы и кухня побольше была, и чтобы у детей свой уголок был. Сломали голову. Может, опыт у кого какой имеется.. Заранее благодарна.
В цифрах это так: например, при общей площади гардеробной для верхней + внесезон. одежды + кладовой 146*130 =1,90 кв.м., полезная 1,46+1,30=2,76 при ширине полок/ штанге = 0,5 м., т.е. длина шкафа при стандартной глубине должна быть = 2,76 м., где вы сможете разместить подобный шкаф в непосредственной близости от прихожей + беспрепятственным доступом для всех членов семьи?
Изменение планировки брежневок: как улучшить условия проживания
Итак, если планируются существенные изменения, это обязательно следует отразить в техпаспорте. К примеру, планировки брежневок дают возможность изменить размер кухни, совместить ванную с санузлом, а кухню – с одной из комнат. Снести стену, объединить спальню с лоджией возможно, но перед началом работ необходимо получить разрешение на проведение таких работ, если это предусматривает действующее законодательство.
Так, разрешения потребуют монтажные работы по установке теплых полов, демонтаж старой и заливка новой стяжки, перенос стен (кроме несущих), создание арок, снос антресолей, встроенных шкафов.
Каждый из нас стремится к комфорту. Удобное проживание, уют и обустроенность помещения – основные составляющие успешной жизни в мегаполисе. Еще полвека назад особой популярностью пользовались однотипные дома: сталинки, хрущевки, брежневки. Половина жителей страны выросла в них. И пусть сегодняшний рынок недвижимости предлагает большой выбор новостроек на любой вкус и кошелек, квартиры старого фонда все так же продаются и покупаются. До сих популярна брежневка 3-комнатная, планировка которой предполагает отсутствие проходных комнат. Да и стоит она на треть дороже новых, несмотря на отсутствие лифта, мусоропровода и износ коммуникаций.
Дизайн малогабаритной 3-комнатной квартиры 63 кв
Чтобы оставить как можно больше свободного места для детских подвижных игр, от идеи поставить две кровати отказались, заменив их на одну выкатную: второе спальное место на ночь “выкатывается” из-под первого, и каждый ребенок обеспечен ортопедическим ложем для здорового сна.
Дизайн трехкомнатной квартиры в панельном доме предусматривает четыре отдельных помещения (гостиная, кухня, спальня и детская) пусть и небольшого размера. Дополнительно хозяевам хотелось иметь гардеробную, а также достаточное количество мест, куда можно убирать вещи.
Возможности при перепланировке брежневки
Стандартным вариантом является объединение гостиной и кухни. Некоторые собственники квартир устанавливают стиральную машину на кухне, а не в ванной комнате. В остальном все варианты перепланировки сводятся к превращению трешки в четырехкомнатную брежневку или наоборот. В первом случае можно просто поставить перегородку в самой большой комнате и получить две маленьких или немного сократить кухонное пространство. Во втором случае речь идет об объединении кухни со смежной комнатой.
Время идет, дома становятся старше, а ритм жизни меняется. Сегодня брежневки не так популярны и комфортны, как современные варианты квартир. Особое недовольство вызывают квартиры из двух комнат: брежневка 2-комнатная планировка – это вариант, который для большинства людей неудобен.
Купить квартиру в строящемся комплексе не может позволить себе среднестатистический житель России, поэтому нужно искать выход в другом направлении. Обратите внимание на изменение конфигурации брежневки – на перепланировку. В этой сфере работает большое количество проектировщиков, способных сделать квартиру удобнее для проживания, придав ей современный вид. Чтобы не быть голословными, в нашей статье расскажем об особенностях перепланировки брежневки и о том, какие ее варианты пользуются популярностью у граждан.
Проект недели: как оформить трешку в брежневке
Окна квартиры выходят на северо-восток и одно – на юго-запад. Поэтому ключевой задачей было не только грамотно распорядиться естественной инсоляцией квартиры, предусмотрев возможность проникновения света во все ее части в течение светлого времени суток, но и найти разные сценарии освещения в вечернее и ночное время.
Кредо бюро – создавать пространства для жизни. В проектах дизайнеры стремятся не просто грамотно решить практические задачи заказчиков, но и создать интерьер, который отражает личность хозяев, их стиль жизни и в который приятно возвращаться каждый день. 27 Дек 2018 marketur
1556
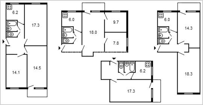
Поделитесь записьюПланировка 3 комнатной квартиры в 9, 5 этажном доме
На фоне усиленного темпа роста многоквартирной застройки возрастает и разнообразие планировок жилья. Особое место здесь занимает трехкомнатная квартира. В грамотно организованном жилом пространстве могут продолжительное время соседствовать люди любых возрастных категорий с разными вкусами. Обладая небольшими навыками оформления и ориентируясь на тенденцию изменения дизайнерских направлений, можно улучшить планировку практически любой трехкомнатной квартиры. 3-комнатная квартира с изолированными спальнями
Планировка квартир в новостройках
У больших семей высоким спросом пользуются просторные жилые площади.
Размеры и организация пространства таких трехкомнатных квартир могут быть разнообразными. Данное жилье предусматривается проектом как в кирпичных, так и в панельных зданиях.
Самый актуальный вариант планировки новой трехкомнатной квартиры — студия. В ней допускается формировать жилплощадь под себя путем возведения дополнительной перегородки.
В новостройках премиум-класса квадратных метров на порядок больше, поэтому зачастую предусмотрено несколько санузлов. 3-комнатная квартира премиум-класса
Площадь под туалет по всем правилам современного проектирования выделяют вблизи кухонного помещения. Достаточное количество «квадратуры» отдается под балкон или лоджию.
Современная трехкомнатная квартира в 90 % случаев по завершении постройки передается будущим владельцам без перегородок. Делается это с целью создания для них возможности собственного моделирования площади.
Широко используется проектирование типовых чешских квартир, состоящих из трех комнат.
Их площадь — 64 кв. м, а главное отличие — тесная коридорная система с кладовками. Зачастую такое помещение переделывают в гардероб. Балкон и лоджии достаточно большие, а за счет того, что количество несущих стен минимизировано, в них допускается проводить желаемую перепланировку.
Разновидность планировки трехкомнатной квартиры в современной новостройке
В современных просторных квартирах используются различные схемы организации пространства. Наиболее встречаемые из них следующие:
- «самолет» или «распашонка». Окна помещений «смотрят» на разные стороны здания;
- вариант с комнатами, где две из них делают смежными, а третью — изолируют;
- все 3 комнаты расположены отдельно.
Зачастую сейчас подбирают такие планировки трехкомнатных квартир, чтобы у каждой изолированной комнаты были свой санузел и балкон. Особое внимание уделяется освещению. Чтобы максимально увеличить его, проектом предлагается постройка балконов французского типа. Французский балкон
Такие квартиры в основном являются угловыми.
Планировка квартир вторичного жилого фонда
Сюда относятся 3 разновидности построек.
«Сталинка»
В Москву и другие города России эти кирпичные дома «пришли» в 50-е годы. Для квартир, расположенных в таких зданиях, характерны 3-метровые потолки, отдельно размещенные комнаты, раздельные ванна и туалет, большой холл и проемы в виде арок. «Сталинка»
«Хрущевка»
Строительство таких домов велось вплоть до середины 80-х гг. Изначально в квартирах были низкие потолки, объединенный санузел, малое кухонное помещение. «Хрущевки» также имели недостаточный уровень теплоизоляции. Позже в них начались массовые перепланировки, так как большинство перегородок не были несущими.
Сейчас проект «хрущевки» кардинально меняют, делая в ней из кладовки гардеробную комнату либо преображая всю квартиру в студию.
Старое напольное покрытие полностью меняется на плитку, а соседние помещения (спальня и балкон, например) объединяются, если это не запрещено проектом.
Планировка «хрущевки». «Распашонка»
«Брежневка»
Это несколько улучшенный вариант «хрущевки». Помимо всего прочего сюда добавляются антресоли и ниша под кухонным окном, предназначенная для хранения продуктов. Количество санузлов возрастает, в том числе раздельных. В такой квартире комнаты размещены по принципу «самолета» либо «вагончика». Планировка «брежневки»
Нюансы создаваемой современной планировки
Улучшенная планировка всегда предусматривает кухонное пространство площадью более 15 кв. м, а в ванную комнату должна помещаться мини-сауна. При этом значение ширины балкона должно начинаться от 1,2 м.
На примере данной квартиры, чей вид сверху изображен на схеме, можно на первом этаже формировать гостиную комнату с кухней, а на втором — спальню. На обоих этажах лучше предусмотреть несколько санузлов — и для хозяев, и для возможных гостей.
Также необходимо учесть дополнительные важные моменты.
Выбранный стиль
Их существует достаточно. Так, например, можно сочетать скандинавскую сдержанность с лофтом или использовать хай-тек. Но наиболее распространенным является классический стиль. Ему присущи следующие оттенки:
- молочный;
- разбавленный коричневый;
- пастельный тон.
Для придания изысканности в такой интерьер добавляют яркие детали в виде мебели, панно на стену.
Самое удачное решение — объединение гостиной и кухни в одном оттенке. Типичный классический стиль интерьера квартиры
Декор санузлов в современных квартирах сведен практически к нулю.
Выбор предметов интерьера
Они подбираются в едином стиле.
Так, например, если изначально приобретаются закругленные стеллажи, то такими же должны быть и светильники, а проемы — арочными.
Разнообразить декор можно необычными вещами, например, круглой кроватью или зеркалом, будто сделанным из мелких квадратов, украсить все пространство мелкой японской атрибутикой. При этом нет необходимости загромождать квартиру мебелью. Наоборот, чтобы визуально расширить площадь своего дома, лучше отказаться от крупногабаритных вещей. Вариант планировки трехкомнатной «хрущевки», в которой одна из комнат — детская
В детскую требуется подбирать все вещи исходя из возраста ребенка. В нее отлично впишется и сохранит пространство для игр одна двухъярусная кровать вместо двух обычных. Вариант оформления детской
Необходимо учитывать, что если в семье имеется человек, работающий дома, то ему потребуется личный кабинет. Им может быть одна из комнат, так как 3-комнатные квартиры достаточно просторны, и в среднем их площадь составляет 56-80 кв.
Ванную лучше выбирать нестандартной формы. Это позволит иметь дополнительное пространство для установки душа и стиральной машины.
Как выбрать жилье с планировкой
Необходимо определиться с необходимой функциональной площадью помещений.
На плане квартиры ниже приведен вариант с размерами, подходящий для семьи, состоящей из 3-4 человек. Здесь изображена большая прихожая со шкафами для одежды и обуви. Каждая комната изолирована. Кухонное помещение и раздельный санузел (при необходимости его можно сделать единым) расположены в левой части квартиры, а в правой — 2 спальни разных габаритов. В самом центре имеется гостиная, которую при желании можно сделать частью кухни. Вариант планировки 3-комнатной квартиры
Таким образом, чтобы грамотно выбрать будущее жилье, необходимо обращать внимание на:
- размеры и расположение комнат;
- количество окон;
- наличие (отсутствие) балкона (лоджии), их количество и габариты;
- удаленность квартиры от мусоропровода и лифта;
- развитие инфраструктуры района.

Если квартира отвечает необходимым требованиям по всем вышеуказанным пунктам, то это отличный вариант. Если же долгое время не удается найти ничего подходящего, то можно обустроить пространство под свои нужды самостоятельно, учитывая все приведенные нюансы.
Что такое «брежневка», и почему она «улучшенка» — Недвижимость
С принятием нового стандарта типового строительства начали проектировать новые или усовершенствовать готовые серии домов. Настала пора «брежневок» или «улучшенок» — предвестников современных новостроек.
Их расцвет произошёл в период правления Брежнева, поэтому и такое название. Пик строительства пришелся на конец 60-х по конец 80-х гг. Строили их из железобетонных панелей или силикатного кирпича.
Причиной запуска «брежневок» стал рост претензий населения к качеству жилья. Восторг от получения собственной «хрущевки» постепенно рассеивался, и компромисс в итоге был найден — «брежневка».
О том, что такое «хрущевки», и как в них жилось, читайте в статье «Что такое «хрущевка»: плюсы и минусы малогабаритного жилья»
По факту, «брежневка» — это среднее арифметическое между двумя диаметрально противоположными принципами и задачами городской застройки: «ухудшенная сталинка» или «улучшенная хрущевка».
Об особенностях «сталинской архитектуры» читайте в нашей статье «Что такое «сталинка» и в чем ее прелесть».
Особенности «брежневок»
1
Есть лифты и мусоропроводы.
2
В основном «брежневки» — это панельные дома.
3
«Брежневки» периода 60-х гг. обычно были не выше 9-ти этажей, с начала 70-х гг. они резко устремились ввысь и выросли до 16-ти этажей.
4
Крыши плоские, покрыты битумом и оборудованы водостоком.
Плюсы «брежневок»
✓
Большая площадь квартир и высота домов, чем у «хрущевок»
✓
Раздельный санузел с организованной гидроизоляцией
✓
Широкие лестничные клетки и пролеты
✓
Расположение в районах с хорошей инфраструктурой
✓
Комнаты, в основном, изолированны
✓
Средние по размеру кухни (около 9 м), где можно собраться на ужин всей семьей
✓
Грамотная планировка при относительно небольшом размере квартиры
✓
По сравнению со «сталинками» и «хрущевками» юный возраст домов
✓
Панельное строение обеспечивает практически идеально ровные пол и потолок
Минусы «брежневок»
✘
Плохая теплоизоляция, что особенно ощущается в угловых квартирах. Из-за того что батареи находятся в стенах, приходится устанавливать дополнительные радиаторы и даже утеплять стены
✘
В некоторых сериях «брежневок» остались маленькие кухни
✘
Плохая звукоизоляция
✘
В пятиэтажках отсутствуют лифты
✘
Нередко расходятся швы между панелями
✘
Ограниченность в перепланировке квартиры — большая часть стен несущие
✘
Тесные ванные комнаты
У «брежневок», безусловно, есть как свои плюсы, так и минусы. И вопрос покупки решается уже исходя из ваших личных пожеланий и приоритетов.
Подобрать подходящую именно вам недвижимость вы всегда можете на ДомКлик.
С этой статьей читают
Что такое «хрущевка»: плюсы и минусы малогабаритного жильяЧто такое «сталинка» и в чем ее прелестьПравила безопасности при покупке квартиры
Планировка «брежневки» — описание и типовые варианты
Стоит начать с того, что брежневки — это улучшенный вариант хрущевок, хотя они тоже относятся к массовому виду квартир. Эти серии домов проектировались с 1965 по 1980-е года, когда СССР руководил Генеральный секретарь ЦК КПСС Леонид Ильич Брежнев. От его имени и пошло название домов.
Блок: 1/4 | Кол-во символов: 288
Источник: https://realt.by/wiki/term/brezhnevka-opisanie-planirovki-otlichie-ot-khrushchevki/
Планировка брежневка: история «брежневских» квартир
«Хрущевки» очень хорошо подходили для быстрого и дешевого расселения граждан СССР в отдельные квадратные метры, но время шло и требовались более современные решения.
В результате появилась целая серия зданий, получивших в народе название — «брежневки».
Название это пошло от имени генсека Л.И. Брежнева, во времена которого происходила крупномасштабная застройка этой серии домов, хотя некоторые строились еще и при Хрущеве и были названы «ранние брежневки».
Вообще период возведения зданий занимал с 1964 г. до начала 1980-х годов, хотя это касается Москвы, в регионах строительство некоторых планировок, относящихся к «брежневкам» продолжается до сих пор. Самый пик строительства пришелся на 70 — 80-е гг. прошлого столетия, строились они из панели, кирпича и редко из блоков.
Блок: 2/5 | Кол-во символов: 832
Источник: https://www.HabRealty.ru/planirovka/planirovka-brezhnevka.html
С этой статьей читают
Что такое «хрущевка»: плюсы и минусы малогабаритного жильяЧто такое «сталинка» и в чем ее прелестьПравила безопасности при покупке квартиры
Была ли эта статья полезна?
Блок: 2/12 | Кол-во символов: 310
Источник: https://blog.DomClick.ru/post/chto-takoe-brezhnevka-i-pochemu-ona-uluchshenka
Характеристики планировок домов «брежневка»
«Брежневка» уступает т.н. «Новой» планировке, но всё же немного лучше, чем «хрущевка». Встречается около сорока видов модификаций планировок построек этого типа. Изначально планировка предусматривала восьми и девятиэтажные, но есть и пятиэтажные варианты.
Планировка предусматривала квартиры от 1-комнатных до 5-комнатных.
Большинство «брежневок» строились из панели, но есть и кирпичные варианты. Сделанные из панели «брежневки» отличаются от «хрущевок» наличием чуть большей по площади кухни — 6,8 — 7,4 кв.м. и потолков высотой 2.7 метра(имеются ввиду панельные серий II-29, II-49, I-1605/9, II- 18/9, I-515/9m, I-515/9ш, 1-Лг-602, 1ЛГ504Д2, 1-Лг-606, 121, 1-Лг-600). В остальном они имеют те же смежные комнаты и туалет с ванной комнатой, а так же мусоропровод между этажами и лифт.
Кирпичные варианты, представлены сериями 1-528КП-41 высотой в 9 эт. и 1-528КП-80 высотой в 14 этажей. «Брежневки», в основной своей массе имеют этажность 9 — 17 этажей, в то время, видимо, все устремления были поближе к космосу, в результате появилось много серий в виде одно-двух подъездных «башен».
Крыша у брежневских домов плоская, водоотвод, обычно, внутренний. Жилье в панельных постройках имеет подоконники шириной до 30 см., а кирпичных до 45см.
Блок: 3/5 | Кол-во символов: 1286
Источник: https://www.HabRealty.ru/planirovka/planirovka-brezhnevka.html
Плюсы и минусы трехкомнатной квартиры в брежневке
Плюсы этого типа зданий и жилых помещений:
- Многих порадовала гидроизоляция в санузле.
- Широкие подоконники
- Кирпичные варианты зданий, они теплые и надежные.
- В некоторых модификациях под названием «башни» кухни спроектированы в больших размерах. Их метраж составляет около 10 кв. м.
- Наличие хороших и комфортабельных лоджий.
- Два лифта разного назначения.
- Много преимуществ перед «сталинками» (лестничные пролеты шире, наличие «холодильника» под подоконником, удобное расположение комнат, особенно тех, что имеют две и больше).
«Брежневки» пришли на смену тесным «хрущевкам», которые не всегда имели удачную планировку.
Поскольку такой вариант постройки помещений уже изжил себя, можно найти и много небольших недостатков в такой идее.
Новые дома создавались, в основном, из железобетонных плит, что позволяло ускорить процесс их возведения, улучшить звукоизоляцию. Несмотря на плюсы данного решения, в результате квартиры стали более холодными.
Это касается, в первую очередь:
- Панельных модификаций домов, часто не предусматривающих проблемы местности. В результате внутри помещения было холодно, а летом очень жарко, из-за быстро нагрева поверхности.
- Расположение кухни со смежной стеной с санузлом или туалетом. Уровень шумоизоляции низкий, а наличие окошка вверху усиливает эффект присутствия человека в маленькой комнатке.
- Мусоропроводы требуют особой подготовки перед их эксплуатацией или регулярной чистки специально обученным персоналом. Несведущие жители неправильно используют отвод мусора, он забивается и становится привлекательной средой для разведения живности типа крыс и тараканов.
Высота кирпичных «брежневок», как правило, достигала 16 этажей. Такие здания возводились в виде одно- или двухподъездных строений.
Если жильцы подъезда могут скооперироваться и решить ряд задач, то большинство минусов можно было бы нивелировать или избавиться от них. Но это редкость, так как в таких зданиях проживают люди с низким и средним достатком, отличающиеся особенным менталитетом.
Такое жилье предназначалось для больших семей.
Блок: 3/10 | Кол-во символов: 2088
Источник: https://dizainexpert.ru/interer/osobennosti-planirovki-3-komnatnyx-kvartir-v-brezhnevke/
Количество комнат
Если говорить о количестве комнат, то в «брежневках» встречаются как однокомнатные, так и двухкомнатные, трехкомнатные и даже четырехкомнатные квартиры. Совмещенный санузел теперь можно было встретить только в «однушках», не стало проходной комнаты.
Увеличилась общая площадь квартир:
- Средняя площадь 1-комнатой квартиры составляла теперь 27-34 кв. м. (31-33 кв. м. в «хрущевках»).
- 2-комнатная квартира занимала 38-53 кв. м. Для сравнения: в «хрущевках» площадь 2-комнатной квартиры была примерно 30-46 кв. м.
- 3-комнатная квартира имела среднюю площадь 49-67 кв. м. В «хрущевках» – 55-58 кв. м.
- 4-комнатная квартира занимала площадь в 58-76 кв. м. «Хрущевки» не имели 4 комнаты.
Соответственно увеличились размеры комнат:
- Минимальная площадь гостиной теперь составляла 15 кв. м. В «хрущевках» гостиная была от 14 кв. м.
- Минимальные размеры спальни по сравнению с «хрущевкой» не изменились и составляли 8 кв. м.
- Детская комната, как и спальня, минимум была 8 кв. м. В «хрущевках» детская была от 6 кв. м.
- Кухня осталась такой же, как и в «хрущевках», 6-7 кв. м.
Блок: 4/6 | Кол-во символов: 1463
Источник: https://dekoriko.ru/dizajn/kvartira/planirovka-brezhnevki/
Типовая планировка квартир брежневки
Дизайн квартир во многом зависит от планировки. Особенности размещения помещений следующие:
- В однокомнатной квартире вход примыкал к коридору, рядом дверь в санузел. При этом отсутствует проходная комната, так как дверь есть только в кухню. Поэтому интерьер кухни должен предусматривать наличие двери для снижения степени распространения запахов.
- Двухкомнатная имеет длинную прихожую, при этом вход в санузел размещен также, как и в квартире с одной комнатной.
- Трехкомнатная и четырехкомнатная квартиры характеризуются тем, что все комнаты расположены вокруг прихожей. При этом санузел раздельный.
Площадь гостиной и детской были увеличены. Дизайн спальни разрабатывали с учетом того, что ее размеры остались неизменными.
Можно ли улучшить?
Ремонт кухни в брежневке и других помещений усложнен тем, что все стены несущего типа. При этом уровень жизни в квартирах подобного типа на порядок ниже.
Установленные нормы на законодательном уровне определяют то, что все проводимые изменения должны быть зафиксированы соответствующим образом. Для этого нужно обратиться в специальную инспекцию с соответствующими документами. В противном случае при продаже или осмотре квартиры могут возникнуть трудности.
Существует несколько правил, которые должны учитываться при проведении перепланировки. Они следующие:
- Запрещается переносить положение санузла, так как это может стать причиной затопления помещения. Это связано с тем, что приходится самостоятельно проводить прокладку труб и увеличивать их протяженность.
- При перепланировке запрещается затрагивать несущие стены. Их предназначение заключается в принятии и перераспределении оказываемой нагрузки. Если не соблюдать подобную рекомендацию, то есть вероятность падения сооружения.
- Чердачные и другие технические помещения запрещено объединять с квартирой. Подобную процедуру часто проводят обладатели последних этажей, которые стремятся использовать технический для увеличения жилой площади. Выявление подобного нарушения становится причиной штрафных санкций.
- Жилое помещение не должно иметь площадь менее 8 кв. м. Это связано с тем, что меньший показатель становится причиной изменения предназначения комнаты.
- Запрещается проводить перенос отопительных радиаторов из помещений на балкон. Это может стать причиной, по которой к соседям не будет поступать теплая вода. Запрещается вносить другие изменения в систему, так как это может стать причиной существенного снижения ее надежности и функциональности.
Несоблюдение приведенных выше норм может стать причиной, по которой изменения не будут утверждены. При их выявлении могут выписать штраф и издать предписание о необходимости восстановления первоначального состояния жилых помещения за счет владельца.
Блок: 4/6 | Кол-во символов: 2740
Источник: https://xn--80ac1bcbgb9aa.xn--p1ai/brezhnevki/
Что же выбрать?
При принятии решения, какого типа квартиру купить, нужно определить для себя приоритеты. Например, все хрущевки – кирпичные и это их преимущество, так как в них тепло. Плюс, они низкоэтажные. В брежневках холодно, но зато лучше звукоизоляция. Здесь есть лифт, мусоропровод и площадь квартир больше.
Самое главное, что хрущевки дешевле и строились раньше, поэтому часто имеют гораздо лучшее расположение, чем брежневки. При этом нужно помнить, что квартиры времен Никиты Сергеевича старше, а значит уже сейчас они требуют капитальный ремонт и денежные вложения. Однако, заметим, что, учитывая низкую стоимость хрущевок, это отличный начальный вариант на пути приобретения квартиры своей мечты.
Брежневка 9 этажей
Блок: 4/4 | Кол-во символов: 727
Источник: https://realt.by/wiki/term/brezhnevka-opisanie-planirovki-otlichie-ot-khrushchevki/
Описание брежневки и варианты перепланировки
На протяжении длительного периода планировки брежневок пользовались большой популярностью. Сооружения подобного типа выглядят следующим образом:
- При строительстве использовали бетонные панели. Они существенно ускоряли процесс постройки и делали сооружения более дешевыми.
- Выглядят сооружения непривлекательно: серые, с близким расположением окон. За длительный период эксплуатации применяемые материалы при строительстве потеряли свою привлекательность.
Рассматриваемые сооружения являются отголоском прошлого, встречаются практически во всех городах. При этом применяемые проекты предусматривали создание одного или нескольких подъездов, сооружения могут напоминать своеобразную стену или высотку.
Особенности зданий и квартир
Перепланировка брежневки усложняется по причине применения плит в качестве основного материала. Поэтому все стены выступают в качестве несущих элементов. Подобные проекты применялись при строительстве вплоть до 1980 г., даже после появления новых их используют во многих странах. Это прежде всего связано с низкой стоимостью бетонных плит и ускорением процесса строительства.
Первое время возводили сооружения только с 5 этажами. Это связано с тем, что архитекторы не могли с точностью определить, какую нагрузку сможет выдержать используемый материал при строительстве. Через некоторое время стали появляются здания с 9, 10, 14 и 17 этажами. Вместо панелей также стали использовать кирпич и блоки, но подобные сооружения встречаются крайне редко по причине высокой стоимости.
Преимущества и недостатки
На протяжении длительного периода архитектуры страны практически не создавали проекты для возведения жилых сооружений. Поэтому брежневки представлены улучшенными хрущевками. Изменения заключаются в следующем:
- Квартиры стали больше. Однако показатель был изменен всего на 2 кв. м. Максимальная площадь составила 76 кв. м.
- Новшеством стало то, что в высотках устанавливали лифты и мусоропроводы. Их наличие существенно повысило комфорт в сооружении. Однако состояние подъездов ухудшалось из-за засорения шахты, после чего в сооружении появлялись грызуны и другие вредители.
Нововведения могут считаться достоинством и недостатком нового типа сооружений, поэтому проект хрущевок со временем перестали использовать. К плюсам сооружения относят:
- Несущими стенами стали не только внешние, но и внутренние. Это существенно повысило устойчивость сооружения.
- По проекту санузел в брежневке стал раздельным, и только в некоторых однокомнатных квартирах его сделали совместным.
- Высота потолка была увеличена до 2,7 м.
- Увеличили площадь лестничных пролетов.
- Описание и типовые планровки указывают на то, что в хрущевках были проходные комнаты, но в рассматриваемом случае все они стали изолированными.
- Вместо балконов стали делать лоджии, которые характеризуются большей площадью.
- Дизайн кухни брежневки не во многом отличается по причине одинаковой площади.
Недостатков у проекта много, поэтому его сегодня не используют при строительстве. Они заключаются в следующем:
- Перепланировка двухкомнатной брежневки сложна по причине того, что межкомнатные стены выступают в качестве несущих.
- Применение бетонных панелей стало причиной, по которой в домах зимой холодно, а летом жарком. Решить проблему можно только при самостоятельной изоляции помещений.
- В квартирах шумно, соседи часто слышат друг друга.
Перепланировка трехкомнатной брежневки проводится крайне редко, так как вносить изменения можно только после оценки нового проекта экспертом.
Блок: 2/6 | Кол-во символов: 3507
Источник: https://xn--80ac1bcbgb9aa.xn--p1ai/brezhnevki/
Новостные ленты
- RSS 2.0 feed
- ATOM 1.0 feed
Блок: 6/6 | Кол-во символов: 159
Источник: http://a-h.by/s153/archives/BreZhnevki._Opisanie_i_tipovye_planirovki.html
Особенности дизайна кухни в брежневке
Угловые и центральные квартиры имеют кухню, которая примыкает к коридору. Этот момент исключает вероятность объединения подобного помещения с другими комнатными для увеличения площади.
Чаще всего изменения касаются удаления двери и создания арки. За счет этого можно сделать кухню визуально больше, однако требуется эффективная система отвода запахов.
Объединение малогабаритной кухни и гостиной
Более сложный вариант заключается в объединении кухни с гостиной. За счет этого есть возможность сделать семейные вечера более интересными. Подобный проект реализуется с учетом следующих моментов:
- Удаляемая стена должна быть не несущей.
- Провести подобную работу можно только после согласования проекта.
Не стоит забывать о том, что при объединении помещений запах и шум будет распространяться по всей квартире.
Оформление кухни-гостиной в брежневке
Выделяют большое количество различных способов оформления кухни-гостиной. Наиболее распространен метод, связанный с зонированием. При выборе дизайна учитываются нижеприведенные моменты:
- Практичность.
- Привлекательность.
- Затраты.
Большой популярностью пользуется стиль Hi-Tec, который связан с применением большого количества стекла и металла. Он связан с установкой современного оборудования и зонированием пространства при помощи освещения.
Блок: 6/6 | Кол-во символов: 1325
Источник: https://xn--80ac1bcbgb9aa.xn--p1ai/brezhnevki/
Цвет и декорирование для трехкомнатной квартиры в брежневке
Декор в обновленном помещении очень важен, не меньше перепланировки и расширения пространства. Нужно, чтобы каждая деталь соответствовала целевому назначению ремонта, и расцветка не мешала этому, а гармонировала с общим внешним видом помещения.
Возраст здания, изношенность инженерных систем, расположение стен и окон также влияет на возможность переделки «брежневки».
Основа должна быть оформлена в пастельных цветах, можно сделать яркий акцент или выделить часть комнаты. Если темные оттенки преобладают, то пространство визуально сужается. А еще расширяет комнату наличие блестящих поверхностей: зеркальных, металлических, стеклянных.
Как правило, все стены квартиры являются несущими, поэтому возможность перепланировки в большинстве случаев сильно ограничена, но это не значит, что она невозможна.
Элементы декора не должны быть слишком объемными и громоздкими, только компактными, ведь не хочется заполонить ими все свободное место. Также размещать их надо там, где они не будут мешать при передвижении по квартире. Плюс обязательна единая стилистика, декор должен дополнять, а не задавать общий стиль.
Зонировать помещение можно при помощи цвета, стилистических акцентов, правильного подбора мебели и штор и другими приемами.
Блок: 7/10 | Кол-во символов: 1296
Источник: https://dizainexpert.ru/interer/osobennosti-planirovki-3-komnatnyx-kvartir-v-brezhnevke/
Плюсы «брежневок»
✓
Большая площадь квартир и высота домов, чем у «хрущевок»
✓
Раздельный санузел с организованной гидроизоляцией
✓
Широкие лестничные клетки и пролеты
✓
Расположение в районах с хорошей инфраструктурой
✓
Комнаты, в основном, изолированны
✓
Средние по размеру кухни (около 9 м), где можно собраться на ужин всей семьей
✓
Грамотная планировка при относительно небольшом размере квартиры
✓
По сравнению со «сталинками» и «хрущевками» юный возраст домов
✓
Панельное строение обеспечивает практически идеально ровные пол и потолок
Блок: 8/12 | Кол-во символов: 638
Источник: https://blog.DomClick.ru/post/chto-takoe-brezhnevka-i-pochemu-ona-uluchshenka
Мебель для трехкомнатной квартиры в брежневке
При перепланировке трехкомнатной брежневки также не стоит упускать момент грамотной расстановки мебели. Ее необходимо правильно выбрать, скомпоновать, чтобы фактуры, материалы и цвета сочетались в единую картинку. Если таковая не получается, цель достигнутой считаться не может.
Оформляя комнаты в «брежневке», отдавайте предпочтение светлым оттенкам и негромоздкой мебели.
Обычно стиль минимализм не предполагает особенно мягкого дивана и кресел, но остальные приемлют комфортабельность в виде плавных линий и акцент на уюте. Шкафы также важно подбирать с сочетающиеся структурой и расцветкой. Важно, чтобы они были компактными, практичными и функциональными, занимали меньше места и не причиняли неудобств.
Зонируйте помещения различными способами, и тогда вы сможете создать стильную и идеально подходящую для жизни квартиру.
Итак, брежневки – разновидность квартир, модификации которых бывают разные, отчего немного меняется планировка и некоторые параметры. Но обычно у них небольшой метраж и высокие потолки, не ниже, чем два с половиной метра, что также можно использовать при создании нового ремонта за счет правильно подобранной мебели. Не стоит пренебрегать и выбором цветовой гаммы, палитра влияет на восприятие дизайна, общее настроение тех, кто пребывает в жилище.
Из любой трехкомнатной квартиры можно создать настоящее произведение искусства.
Блок: 8/10 | Кол-во символов: 1407
Источник: https://dizainexpert.ru/interer/osobennosti-planirovki-3-komnatnyx-kvartir-v-brezhnevke/
Минусы «брежневок»
✘
Плохая теплоизоляция, что особенно ощущается в угловых квартирах. Из-за того что батареи находятся в стенах, приходится устанавливать дополнительные радиаторы и даже утеплять стены
✘
В некоторых сериях «брежневок» остались маленькие кухни
✘
В пятиэтажках отсутствуют лифты
✘
Нередко расходятся швы между панелями
✘
Ограниченность в перепланировке квартиры — большая часть стен несущие
У «брежневок», безусловно, есть как свои плюсы, так и минусы. И вопрос покупки решается уже исходя из ваших личных пожеланий и приоритетов.
Подобрать подходящую именно вам недвижимость вы всегда можете на ДомКлик.
С этой статьей читают
Блок: 9/12 | Кол-во символов: 700
Источник: https://blog.DomClick.ru/post/chto-takoe-brezhnevka-i-pochemu-ona-uluchshenka
ВИДЕО: Дизайн и перепланировка 3-комнатной квартиры
Блок: 9/10 | Кол-во символов: 53
Источник: https://dizainexpert.ru/interer/osobennosti-planirovki-3-komnatnyx-kvartir-v-brezhnevke/
Правила безопасности при покупке квартиры
Была ли эта статья полезна?
Блок: 12/12 | Кол-во символов: 185
Источник: https://blog.DomClick.ru/post/chto-takoe-brezhnevka-i-pochemu-ona-uluchshenka
Количество использованных доноров: 7
Информация по каждому донору:
- https://www.HabRealty.ru/planirovka/planirovka-brezhnevka.html: использовано 2 блоков из 5, кол-во символов 2118 (9%)
- https://realt.by/wiki/term/brezhnevka-opisanie-planirovki-otlichie-ot-khrushchevki/: использовано 4 блоков из 4, кол-во символов 4583 (19%)
- https://xn--80ac1bcbgb9aa.xn--p1ai/brezhnevki/: использовано 3 блоков из 6, кол-во символов 7572 (31%)
- http://a-h.by/s153/archives/BreZhnevki._Opisanie_i_tipovye_planirovki.html: использовано 1 блоков из 6, кол-во символов 159 (1%)
- https://dekoriko.ru/dizajn/kvartira/planirovka-brezhnevki/: использовано 1 блоков из 6, кол-во символов 1463 (6%)
- https://dizainexpert.ru/interer/osobennosti-planirovki-3-komnatnyx-kvartir-v-brezhnevke/: использовано 5 блоков из 10, кол-во символов 6731 (27%)
- https://blog.DomClick.ru/post/chto-takoe-brezhnevka-i-pochemu-ona-uluchshenka: использовано 5 блоков из 12, кол-во символов 1984 (8%)
Изменение планировки брежневок: как улучшить условия проживания?
Каждый из нас стремится к комфорту. Удобное проживание, уют и обустроенность помещения – основные составляющие успешной жизни в мегаполисе. Еще полвека назад особой популярностью пользовались однотипные дома: сталинки, хрущевки, брежневки. Половина жителей страны выросла в них. И пусть сегодняшний рынок недвижимости предлагает большой выбор новостроек на любой вкус и кошелек, квартиры старого фонда все так же продаются и покупаются. До сих популярна брежневка 3-комнатная, планировка которой предполагает отсутствие проходных комнат. Да и стоит она на треть дороже новых, несмотря на отсутствие лифта, мусоропровода и износ коммуникаций.
Сталинки, хрущевки, брежневки – привет из далекого прошлого
Первые хрущевки появились еще в 50-е годы прошлого столетия. Они отличались дешевизной стройматериалов, возводились достаточно быстро и позволяли переселить миллионы семей, которые после войны проживали в бараках и коммуналках. О комфорте тогда не особенно задумывались. В отличие от квартиры-брежневки, планировка хрущевки характеризуется смежными комнатами и очень маленькой по площади кухней. Такие дома не выше 5 этажей и без каких-либо отличительных знаков на фасаде. Сначала они планировались как временное жилье, чтобы лет через 20-30 каждый смог получить большую светлую квартиру. Как видим, сегодня эти планы не реализованы, и жизнь хрущевок продолжается.
В середине 60-х появились так называемые брежневки. В отличие от хрущевок, они строились в основном из железобетонных панелей или силикатного кирпича. Конечно, это существенно снижало их теплоизоляцию по сравнению с хрущевками, зато они выигрывали за счет увеличения жилплощади. Так, брежневка 2-комнатная, планировка которой предполагала отсутствие проходных комнат, по жилплощади приравнивалась к трехкомнатной хрущевке. И это были не привычные пятиэтажки, а здания в 9-16 этажей с лифтом и мусоропроводом. Такие планировки брежневок выигрывали также за счет увеличения площади кухни и высоты потолков. И на сегодняшний день основная масса домов в спальных районах – все те же брежневки.
Еще один не менее популярный вид недвижимости прошлого столетия – сталинки. Строить их начали еще в 30-е годы ХХ века. Знамениты они высокими потолками, просторными комнатами, их фасады часто украшались лепкой, балюстрадами и колоннами. Планировка таких квартир значительно отличалась от планировки брежневок и хрущевок, а площадь однокомнатной квартиры в таком доме достигала 50 кв. м. А ведь это 2-хкомнатная брежневка или 3-хкомнатная хрущевка!
До сих пор покупать квартиры-сталинки престижно, стоят они на порядок выше и значительно выигрывают своим месторасположением. В основном это центральные районы города, далеко от промышленных зон.
Перепланировка квартиры: основные моменты
Так уж устроен человек – ему всегда чего-то не хватает, постоянно нужно что-то менять. А в случае с жильем и подавно. Указывая на характерные отличия планировки брежневок, хрущевок и сталинок, нельзя не отметить их общую проблему: однотипность, тесноту, слабую тепло- и звукоизоляцию. Выход есть. Грамотная перепланировка поможет не только придать квартире индивидуальность, но и существенно улучшить и расширить жилплощадь, создав более комфортные условия проживания.
Перепланировка: что разрешено?
Действующее законодательство не запрещает проводить перепланировку. Главное, соблюдать основные требования, иначе в будущем не избежать проблем. К примеру, проживать в этой квартире вы еще сможете, а вот сделки купли-продажи, залога и так далее будут невозможны.
Итак, если планируются существенные изменения, это обязательно следует отразить в техпаспорте. К примеру, планировки брежневок дают возможность изменить размер кухни, совместить ванную с санузлом, а кухню – с одной из комнат. Снести стену, объединить спальню с лоджией возможно, но перед началом работ необходимо получить разрешение на проведение таких работ, если это предусматривает действующее законодательство. Так, разрешения потребуют монтажные работы по установке теплых полов, демонтаж старой и заливка новой стяжки, перенос стен (кроме несущих), создание арок, снос антресолей, встроенных шкафов.
Когда перепланировка запрещена
Законодательством запрещены такие мероприятия:
- снос несущих стен;
- перенос отопительных батарей на балкон и лоджию;
- самостоятельная замена и перенос труб газо- и водопровода;
- смена месторасположения кухни и санузла и перенос ее в помещение, расположенное над жилой комнатой соседа;
- увеличение площади кухни и санузла за счет жилых комнат;
- демонтаж перекрытий между этажами;
- объединение квартиры с чердаком и использование его в качестве жилого помещения.
Разрешение на перепланировку не требуется
Ну а если запланирован мелкий косметический ремонт: замена одного вида батареи на другой, установка кондиционера или наружной антенны, незначительный перенос газплиты в пределах кухни, то никакого разрешения не нужно. Соответственно, изменения в техпаспорт также не вносятся.
Итак, приступая к переделке собственной жилплощади, всегда лучше обратиться к специалистам. Это поможет не только грамотно организовать внутреннее пространство квартиры, но и избежать проблем в будущем.
Планировка 75 серия 3 комнатная. Нюансы планировки трехкомнатной квартиры
Среди современного жилья весьма популярной недвижимостью является 3-комнатная квартира. В зависимости от того, когда было возведено здание и какая у него серия зависит планировка квартир.
Можно сказать, что каждая квартира уникальна, имеющаяся в ней планировка кого-то устраивает, а кого-то нет. Тогда встает вопрос о перепланировке жилой площади. Необходимо детально разобраться в этом вопросе.
Типичная 3-комнатная планировка
В типовой 3-комнатной квартире жилое пространство распределено различным образом, причем некоторые варианты весьма удобны, другие способны доставить дискомфорт.
Существует вариант с двумя маленькими и одной большой комнатой, с одной комнатой изолированного типа и двумя смежными помещениями. Есть так называемая схема «самолет», когда окна комнат выходят на разные стороны дома.
Оптимальными считаются квартиры с изолированными комнатами. В стандартном типе квартиры с тремя комнатами присутствует кладовое помещение, которое, по мнению многих дизайнеров, можно переоборудовать под гардероб.
Если в семье есть дети, то распределение помещений имеет смысл сделать следующим: одну комнату отвести под детскую, одну оставить для спальни, а большую отдать гостиной. Во многих 3-комнатных квартирах присутствует раздельный санузел, они максимально удалены от лестницы и лифта, площадь составляет от 56 до 80 кв. м.
Разнообразие планировок
Выделяют несколько типов планировок в соответствии с видами домов: «сталинки», «хрущевки», «брежневки» и современные варианты.
Сталинка
«Сталинки» строились в начале 50-х годов. Планировка в кирпичных домах этого типа демонстрировала едва ли не лучшее жилье в Союзе.
Высокие потолки, достигавшие трех метров, изолированные комнаты с удобным расположением, раздельный санузел – свидетельства продуманности жилого пространства.
В квартирах могли поселиться рядовые граждане и номенклатурные работники, причем планировка помещений для последних отличалась повышенным комфортом. Внутреннее убранство квартир госслужащих могло похвастаться просторным холлом и арочными проемами, в домах имелись помещения для прислуги.
Хрущевка
«Хрущевки» возводились с конца 50-х до середины 80-х годов (с учетом доработок и появления новых модификаций). Ранние версии домов имели не очень удачное расположение комнат, толщина панельных стен не обеспечивала качественной теплоизоляции, потолки были невысокими, совмещенным делался санузел. Кухня, как правило, была небольшой площади.
Примерно с 1970 года развернулось широкомасштабное строительство 9-этажек из кирпича или панелей. Потолки в новых квартирах располагались на уровне 2,64 м., а внутренние перегородки не несли на себе общую нагрузку. Именно поэтому в таких домах перепланировка 3-комнатной квартиры была обычным явлением.
Брежневка
«Брежневки» считались улучшенным вариантом «хрущевок». Квартиры были средних размеров, встречались раздельные санузлы. Под кухонным окном обустраивалась ниша для хранения продуктов, имелись антресоли. Кухня была больше – от 7 до 9 кв. м.
Современные варианты могут похвастаться улучшенной планировкой, наличием нескольких санузлов. Расположение комнат по схеме «самолет» или группировка так называемым «вагончиком» – часто встречающиеся планировки.
Элитные квартиры представляют собой самое комфортное жилое пространство, спроектированное таким образом, чтобы удовлетворить все потребности человека.
Расположение комнат определяется предпочтениями заказчика, количество санузлов приравнено к количеству комнат, есть отдельные гардеробные, просторные кухни-студии и т.д.
Нюансы планировки трехкомнатной квартиры
Может быть несколько видов планировки. Открытой обладают квартиры-студии. Их можно получить путем переделки, убрав внутренние перегородки и получив большее пространство. Затем его делят на соответствующие зоны, которым присущ собственный дизайн. Закрытая планировка подразумевает изолированность всех комнат, от коридора их будет отделять дверь.
Частично-закрытый тип планировки представляет собой тандем открытого пространства, например, гостиной и закрытого с изолированными комнатами. Их соединяет небольшой по размеру холл.
При смежной планировке выход в коридор имеется у одной из комнат, другие соединены с ней при помощи дверей или оставлен свободным проход. Наконец, сочетание помещений смежного и изолированного типов дают смешанную планировку.
Отдельно стоит обозначить серьезную архитектурную проблему современного строительства. Речь идет о необходимости «вписывать» планировку помещений в иногда чересчур изысканное наружное оформление зданий.
К примеру, на фото планировки 3-комнатных квартир в глаза бросается не оптимальное обустройство жилья, когда тупые или острые углы мешают установке мебели, изогнутые стены создают трудности их обыгрывания в интерьере.
Выбор жилья: как оценить планировку
Решив приобрести 3-комнатную квартиру, необходимо узнать о том, какие существуют критерии оценки приобретаемой площади. Во-первых, стоит сделать акцент на планировке, для чего учесть общую площадь, то, как располагаются комнаты, форму и размеры кухни.
Также важно знать количество окон в квартире. Еще одним важным пунктом будет наличие или отсутствие балкона (лоджии), их количество и размеры.
Необходимо учесть, какие комнаты являются изолированными, какие стены несут нагрузку, какова толщина стеновой панели, железобетонной конструкции или кирпичной кладки и высота потолков.
Кроме того, немаловажным фактором является расстояние от квартиры до лифта (в случае его наличия), лестницы и мусоропровода. Стоит также просчитать соотношение общей и жилой площади, осведомиться насчет инфраструктуры в районе.
Плюсы трехкомнатной квартиры современного типа
Чтобы уяснить существенные отличия планировки квартир в современных монолитных железобетонных домах от планировки в панельном доме, сравним первые с квартирами «хрущевского» типа. Бесспорно, что бурно развивающееся строительство жилья оказало влияние на качество получаемых помещений.
Сегодня проходные комнаты едва ли можно обнаружить в новостройках. Там, где стена комнаты составляет угол дома, делается качественное утепление, препятствующее образованию сырости.
По площади значительно увеличиваются кухня и ванная комната. Высота потолков составляет 3 м. Кроме того, всегда есть свободное пространство, в котором можно создать функциональную зону.
Все вышесказанное говорит об удобстве и рациональной планировке современного жилья. Оно прекрасно подойдет любой семье, в том числе и с детьми.
Когда квартира с искомой планировкой не попадается в поле зрения, не стоит отчаиваться. Нужно самим попытаться проделать все необходимые работы, благо идей современной планировки квартир на просторах сети можно найти массу.
Существуют общепринятые правила планировки. Сначала выбирается помещение и определяется его дальнейшая функция – это может быть спальня, гостиная со спальным местом, сочетание с рабочим кабинетом. После этого оставшееся пространство делиться на зоны, которые как-то обозначаются.
Фото планировки 3 комнатной квартиры
Квартиры с четырьмя комнатами рассчитаны на большие семьи, где особенно важно иметь комфортную и многофункциональную планировку.
Каждая комната должна отражать вкус, характер и сферу деятельности (увлечения) хозяина.
Важно! Существуют два главных правила: изолировать все помещения (насколько возможно), одновременно должно остаться чувство свободного пространства.
Разберем, что может повлиять на выбор жилых помещений. Каким образом скорректировать «неправильную» планировку, чтобы всей семье было наиболее комфортно жить в общей квартире.
Прихожая
В планировке 4-комнатной квартиры чаще длинная прихожая, которая нуждается в корректировке.
Пространство нужно поделить на вход и коридор-холл. У двери нужна вешалка или встроенный шкаф-купе, большое зеркало.
А в холле-коридоре – идеально поместить пуфик (кресло), где можно отдохнуть и поговорить по телефону.
Для выделения зонирования можно по-разному оформить стены, пол и потолок. Например, антресоль поможет разделить пространство.
Для типовой планировки 4-комнатных квартир идеально подойдут встроенные между стенами шкафы-купе, либо шкафы для верхней одежды различных конфигураций.
При большой ширине коридора можно сделать шкафы-секции с небольшой глубиной, их легко будет собрать или переместить как конструктор.
Кухня
Для большой семьи всегда нужно много посуды (кастрюль, сковородок и пр.). В планировках 4-комнатной квартиры «хрущевки» места всегда не хватает.
Дизайнеры предлагают расположить кухонный гарнитур в форме П, она предоставит больше места для хранения кухонной утвари.
Совет! Для экономии места практична откидная столешница в качестве обеденного стола, чтобы продолжала широкий подоконник. Но такой удобный вариант подходит только для планировки 4-комнатных квартир в кирпичных домах.
Гостиная-кухня
Популярна перепланировка, чтобы увеличить площадь для удобства всех членов семьи. Но если на кухне газовая плита, лучше отказать от этой затеи.
Прекрасной альтернативой вместо сноса стены поставить раздвижную перегородку на роликовых опорах, она не будет мешать, даже если убрана стена между кухней и общей комнатой.
Гостиная
Самая просторная комната для всех случаев: встречи гостей, проведение торжеств, семейного ужина, общение всего семейства.
Удачны будут распашные двери, имеющие 2 створки. Тогда гостиная будет казаться просторнее.
При планировке 4-комнатной квартиры улучшенной планировки гостиная просторная и требует грамотного зонирования.
Ее делят на столовую и традиционную зону для отдыха. Особенно удачным будет этот прием в длинных залах (гостиных).
Взрослая спальня
Стандартная планировка 4-комнатной квартиры в панельном доме выделяет под спальню родителей небольшую комнату. Поэтому не хватает лишней комнаты под кабинет или обширную библиотеку.
Отличный выходом станет размещение навесных конструкций в маленьких спальнях. Они добавят полезную площадь, где поместится много мелочей (книг, папок, канцтоваров).
Можно красиво разделить стеллажами (шкафом) рабочую и спальную зоны.
Чтобы удобно было работать за компьютером (ноутбуком), можно подобрать угловой компьютерный столик с тумбочками или навесными полками.
В нем часто есть место для системного блока, который вечно занимает много места под ногами. Рабочую зону лучше оформить у окна, чтобы меньше использовать настольные лампы или навесные светильники.
Детская спальня
Детская также требует зонирования, хотя бы условное. Для малыша-дошкольника нужно небольшая кроватка и просторное место для игр, желательно с большим напольным ковром с большим мягким ворсом.
Ему должно быть тепло на полу сидеть и удобно играть с массой игрушек. Поэтому нужно предусмотреть большой ящик для игрушек.
Школьнику нужен стол для занятий и выполнения школьных заданий. Поэтому необходима уже зона для учебы. Лучше расположить ее у окна, чтобы сохранить зрение, но для вечера или при нехватке солнечного света обязательна яркая настольная лампа с теплым свечением. Для учебников и книг нужен шкаф или стеллажи.
Дизайнеры предлагают немало способов зонирования, перепланировки чтобы решить любые бытовые проблемы.
Каждое помещение можно оформить в собственном стиле, учесть запросы каждого члена семьи в его комнате. При возникновении вопросов всегда можно обратиться к профессионалам.
Предлагаем готовые дизайнерские решения на фото планировки 4-комнатной квартиры.
Фото идей планировки 4-х комнатной квартиры
Дизайн квартиры 75 кв.м требует грамотного подхода. Большое пространство, должно быть рационально использованным и комфортным. Оформление интерьера требует особого внимания.
Проект 3-х комнатной квартиры должен содержать в себе большую гостиную, уютную спальню, детскую и многофункциональную кухню. Здесь необходимо правильно сочетать цветовые оттенки и предметы мебельной атрибутики.
Что же касается стиля, то интерьер будет выполнен в американском направлении. Планировка получается достаточно универсальной для каждого поколения. Здесь будут присутствовать контрастные детали, которые гармонично впишутся в дизайн жилого пространства.
Помимо этого, помещение будет максимально просторным. Большое количество красивых материалов и тканей, помогают создать лаконичный дизайн.
Отделочные работы
В интерьере квартиры присутствуют натуральные материалы – деревянный массив и пастельные оттенки. В зоне приема гостей и близких, преобладают оливковые тона на поверхности стен. Этот цвет идеально гармонирует с терракотовыми красками напольного покрытия. Для оформления оконного пространства был выбран насыщенно – бордовый оттенок штор.
На центральной стене располагается абстрактная 3D фреска. Она содержит в себе сочетание ровных линий, выполненных из натурального дерева.
В зоне приема пищи принято выбирать более темные краски. Дело в том, что ежедневная готовка оставляет большое количество загрязнения различной сложности. Исправить это помогает текстурная плитка серого оттенка.
В последнее время, эта палитра пользуется огромным спросом среди профессиональных дизайнеров. Она считается классической, что позволяет ей оставаться модной в течение нескольких сезонов.
Ванная комната будет украшена в приглушенно-коричневом цвете. Он добавляет помещению своеобразную изюминку и ощущение полной гармонии. Оттенок способствует максимальному расслаблению после трудовых будней. Поверхность напольной плитки содержит в себе тонкую текстуру из плавных линий. На стенах присутствует глянцевые элементы в виде акцентной группы.
Добавить торжественности в общую композицию можно с помощью молдингов из гипсокартона. Они могут иметь ровную поверхность или эффект лепнины. Основная задача этого направления, заключается в создании роскошной атмосферы, которая будет задавать эмоциональный настрой в большой квартире.
Мебель для американского интерьера должна соответствовать выбранному стилистическому направлению. Помимо функциональности она должна идеально гармонировать с общей композицией. В дизайне должны присутствовать плавные линии, которые добавляют мягкости строгой обстановке.
За основу взяли натуральный крашеный лен. Современные технологии предлагают огромный выбор цветовых пигментов. Это позволяет сочетать в себе различные оттенки.
Что же касается системы хранения, то для этого были использованы вместительные шкафы и напольные тумбы. Это позволило максимально разгрузить интерьерное пространство.
Журнальный столик в гостиной выполнен по типу трансформера. Во время приема гостей он превращается в полноценную обеденную группу.
В интерьере присутствует большое количество старинных предметов (винтажные сундуки, просторный комод с элементами кожаных вставок). Уютные пуфики располагаются в угловой части помещения.
Для оформления кухонного пространства использовали качественный мебельный гарнитур немецкого производства. Оригинальная фурнитура добавляет роскоши в окружающее пространство. Сочетание глянцевых и матовых поверхностей создают изысканную атмосферу.
В зоне сна и спокойствия присутствует пастельная палитра на стенах. Мебельная атрибутика выполнена из высококачественного древесного массива. Система хранения представлена из шкафа-консоли. Сверху располагается плазменная панель. Опытные дизайнеры, предпочитают использовать навесные кронштейны. Они помогают надежно зафиксировать телевизор на поверхности стены.
Добавить лаконичности можно абстрактной живописью. Она может быть выполнена в контрастных красках. Эти предметы интерьера могут выступать в роли акцентной составляющей. На прикроватных тумбах, располагают изысканные светильники. В дизайне присутствуют плавные линии и минимум деталей. Абажуры выполнены из однотонной ткани темного цвета.
Детская комната должна содержать многофункциональную мебель. В основном здесь присутствует полноценное спальное место, которое трансформируется в аккуратный диван. Для книг и игрушек предназначается вместительный шкаф.
Постельные принадлежности и мелкие вещи, можно расположить в угловом комоде. Для выполнения домашнего задания и уроков предусмотрено уютное рабочее место. Оно располагается возле оконного проема, тем самым компенсируя недостаточное количество солнечного света.
Освещение пространства
Главной отличительной чертой американского стиля, является чрезмерное количество искусственных источников света. В основном это подвесные светильники и лампы. В процессе ремонта квартиры, рекомендуется уделить особое внимание напольной и потолочной подсветке.
Для кухонной зоны применяют точечный свет. Он предназначен для выделения определенных областей обеденного пространства.
В гостиной расположена большая люстра в виде абажура. Дизайн не должен содержать чрезмерного количества различных мелочей. Что же касается цветового решения, то она выполнена в светло – бежевом оттенке. Добавить уюта, помогают напольные торшеры и красивые бра, расположенные на стенах.
Для освещения детской выбрано более 10 источников освещения. В основном это потолочные светильники. В разных частях помещения установлены лампы ночного света. Для рабочей зоны использовали настольные конструкции светильников.
Декорации
Декоративными акцентами американского стиля, считается чрезмерное количество роскошных деталей. В основном это: бархатная обивка на креслах, шерстяное напольное покрытие и обилие блестящих поверхностей.
В зоне приема гостей, оконные проемы украшены натуральными материалами. Белоснежный однотонный тюль идеально гармонирует с грубым темным льном. Он способен защитить от назойливого солнца. Как видите, некоторые детали позволяют сделать красивую квартиру.
В детской комнате присутствует яркий текстиль. Обивка дивана выполнена из бархатного материала. На окнах присутствуют шторы насыщенного цвета. Напольное покрытие состоит из шерстяного материала. Добавить уюта, помогут модели с длинным ворсом. На фото дизайна квартиры 75 кв. м изображены акцентные составляющие данного проекта.
Фото квартир 75 кв. м.
Немногие наши соотечественники сегодня могут похвастаться тем, что площадь жилья полностью удовлетворяет их. Даже людям, которым посчастливилось купить или получить в наследство просторные трёхкомнатные квартиры московской планировки, нередко задумываются о том, что многое можно было бы оптимизировать. Например, кухня может быть слишком маленькой, коридор – слишком длинным и тёмным, и вообще не помешало бы заполучить ещё одно помещение, которое можно было бы выделить под кабинет или дополнительную детскую комнату.
Функциональная планировка 3-х комнатной квартиры
Что ж, можно просто сидеть, сожалеть и иногда жаловаться друзьям и знакомым, что квартира не удовлетворяет вас по ряду причин. А можно просто попытаться что-то сделать. И в таком случае перепланировка трехкомнатной квартиры является единственным способом превратить стандартное помещение в жилье вашей мечты.
Разумеется, прежде чем начинать чертить чертежи самостоятельно или прибегать к помощи специалистов, стоит определиться с тем, что же вы хотите получить в результате.
Расширить кухню? Изменить внешний вид коридора? Получить дополнительную спальню, которую можно было бы выделить подрастающему ребёнку или пожилым родителям, решившим переехать к вам? Тщательно продумайте, а нужно ли вам вообще начинать ремонт в своей квартире? Ведь начав, бросить дело на полпути уже не получится. И работа может растянуться на многие недели и даже месяцы; это будет действительно тяжелое испытание и для ваших нервов, и для семейного бюджета.
Когда решение окончательно принято, можно начинать составлять план. Конечно, если вы можете себе это позволить, то лучше доверить работу специалистам. Ведь зачастую перепланировка квартиры сопровождается переносом или даже сносом стен.
первоначальный план 3-комнатной квартиры
вариант перепланировки трехкомнатной квартиры со сносом стен коридора
Только опытные специалисты смогут учесть все нюансы, гарантируя, что в результате вы получите совершенно безопасное и уютное жилье. Они учтут, какие стены в квартире являются несущими (а значит, с ними стоит работать только в крайнем случае), а какие – самонесущие. Учтут и материал, из которого построен дом.
Разумеется, у них есть планы различных домов со всеми характеристиками: толщиной стен, постоянными нагрузками, несущими конструкциями и так далее. Поэтому они смогут выполнить всю работу максимально качественно, независимо от того, в каком доме находится ваша квартира – 83 серии или 137 серии.
планировка трехкомнатной квартиры в домах 137 серииПеренос или снос капитальных стен – очень важный процесс. И выполнять его можно только после получения разрешения в соответствующих органах.
Эту работу точно лучше доверить специалистам. Да, придется заплатить за их помощь. Зато в результате нужные документы будут собраны за считанные дни. В противном случае процесс их сбора вполне может затянуться на несколько недель или даже месяцев. Служащие контор будут отправлять вас из одного кабинета в другой, требовать всё новые и новые справки и разрешения. Тем, кто проходил эту процедуру, она вспоминается только в страшных снах.
Читайте также
Планировка двухкомнатной квартиры
Вы можете сами выбрать подходящий для вас проект:
- Стандартный проект. Он имеет относительно невысокую цену. Но не всегда может полностью удовлетворить требования владельца квартиры, так как был разработан по желанию другого заказчика.
- Уникальный проект. Обойдется вам довольно дорого, зато здесь вы будете вольны в своих фантазиях. Ваша квартира может быть преображена до полной неузнаваемости. Стандартная 3-хкомнатная квартира в панельной пятиэтажке может превратиться в роскошные апартаменты, отвечающие всем вашим требованиям.
Какой вариант выбрать? Решайте сами!
Как правильно снести стену в квартире.
Начинаем с кухни
Итак, схемы начерчены и планы готовы. Можно приступать к работе. Наиболее часто в трёхкомнатных квартирах подвергается перепланировке помещение, отведённое под кухню. Действительно, просто не может удовлетворить требования многих людей. А ведь именно здесь приходится старательно работать, чтобы приготовить вкусный ужин для всей семьи. А во время ужина, особенно если за столом собирается 5-6 человек, в кухне становится особенно тесно. Значит, нужно расширить помещение.
Если выход на балкон находится на кухне, как это обычно бывает в домах 121 серии, можете считать, что вам повезло. Именно за счет балкона можно значительно расширить кухню.
Да, придется качественно остеклить его, утеплить, провести отопление и демонтировать дверь с оконной рамой, соединяя балкон с кухней.
Кроме того, теперь пользоваться балконом будет не так удобно, ведь дотягиваться до дальних веревок, высовываясь из окна, довольно затруднительно. Однако дополнительные 2-3 квадратных метра к площади кухни (в стандартная площадь кухни составляет около 6-7 квадратных метров) полностью окупают любые затраты и легкий дискомфорт.
Теперь вы получили довольно просторное помещение. Плиту, холодильник и шкафы можно переместить на балкон: там будет основная рабочая зона. А вот в самой кухне можно установить большой стол или даже кухонный мягкий уголок, ведь места для этого теперь будет вполне достаточно.
Кстати, если между кухней и балконом был широкий, массивный подоконник из бетона, какой часто встречается в домах 75 серии, не всегда имеет смысл демонтировать его. Демонтаж связан с большими проблемами: на эту непростую работу может уйти целый день.
стандартная планировка квартиры в домах 75 серии
Вывезти строительный мусор и аккуратно выровнять и замаскировать стены – дополнительные хлопоты. Поэтому многие люди принимают весьма удачное решение: используют подоконник в качестве кухонного стола. Можно установить на него небольшую столешницу и соответственно декорировать его, а можно просто обклеить моющимися обоями или клеёнкой, чтобы новый столик гармонично смотрелся в интерьере помещения.
Читайте также
Планировка квартир в хрущёвках
Но стоит учитывать, что в большинстве случаев эта стена является несущей. В некоторых случаях, например, в крупнопанельных девятиэтажных домах 90 серии, вы вообще можете не получить разрешение на любые действия, направленные на изменение и ослабление этой стены. Поэтому можете сделать только небольшую косметическую переделку помещений под свои нужды, подробнее это показано на чертеже.
небольшая перепланировка трехкомнатной квартиры без существенного изменения расположения помещений
Достаточно нарушить эту конструкцию, несущую нагрузку в сотни тонн, чтобы весь дом просто рухнул. Правда, чем выше находится квартира, тем меньше будет нагрузка на стену.
Поэтому для перепланировки квартиры на 7-9 этаже разрешение получить легче всего. В остальных случаях придется всерьёз попотеть.
В любом случае, если вы сносите несущую стену или просто делаете в ней межкомнатное окно, придётся компенсировать несущую способность конструкции при помощи металлического профиля.
Вконтакте
Одноклассники
Google+
как улучшить жилищные условия?
Каждый из нас стремится к комфорту. Комфортное проживание, уют и обустройство помещений — главные составляющие успешной жизни в мегаполисе. Полвека назад особой популярностью пользовались однотипные дома: сталинские, хрущевские, брежневские. В них выросла половина жителей страны. И хотя сегодня рынок недвижимости предлагает широкий выбор новостроек на любой вкус и кошелек, квартиры старого фонда по-прежнему продаются и покупаются.По-прежнему популярна 3-комнатная брежневка, планировка которой предполагает отсутствие проходных комнат. Да и стоит на треть дороже новых, несмотря на отсутствие лифта, мусоропровода и износа коммуникаций.
Сталин, Хрущев, Брежнев — привет из далекого прошлого
Первые хрущевки появились еще в 50-х годах прошлого века. Они отличались дешевизной строительных материалов, строились достаточно быстро и позволяли переселить миллионы семей, которые после войны жили в бараках и коммунальных квартирах.Тогда они не думали о комфорте. В отличие от брежневской квартиры, хрущевская планировка отличается смежными комнатами и очень маленькой площадью кухни. Такие дома не выше 5 этажей и без декалей на фасаде. Сначала они планировались как временное жилье, чтобы через 20-30 лет каждый мог получить большую светлую квартиру. Как видите, сегодня эти планы не реализуются, а жизнь Хрущева продолжается.
В середине 60-х годов появилась так называемая брежневка.В отличие от хрущевок, они строились в основном из железобетонных панелей или силикатного кирпича. Конечно, это значительно снизило их теплоизоляцию по сравнению с хрущевками, но они выиграли за счет увеличения жилой площади. Так, брежневская 2-комнатная, планировка которой предполагала отсутствие проходных комнат, по жилой площади была равна трехкомнатной хрущевке. И это были не обычные пятиэтажки, а дома в 9-16 этажей с лифтом и мусоропроводом.Такие планировки брежневки победили еще и за счет увеличения площади кухни и высоты потолков. И сегодня основная масса домов в спальных районах — все та же брежневка.
Еще один не менее популярный вид недвижимости прошлого века — сталинка. Их начали строить еще в 30-х годах ХХ века. Они славятся высокими потолками, просторными комнатами, их фасады часто украшают скульптуры, балюстрады и колонны. Планировка таких квартир существенно отличалась от планировок Брежневки и Хрущева, а площадь однокомнатной квартиры в таком доме достигала 50 квадратных метров.м. Но это же 2-х комнатная брежневка или 3-х комнатная хрущевка!
До сих пор сталинские квартиры престижно покупать, они стоят на порядок дороже и значительно выигрывают своим расположением. В основном это центральные районы города, удаленные от промышленных зон.
Перепланировка квартиры: основные моменты
Так работает человек — ему всегда чего-то не хватает, ему всегда нужно что-то менять. А в случае с жильем и подавно. Указывая на характерные различия в планировке брежневок, хрущевок и сталинцев, нельзя не отметить их общую проблему: однородность, герметичность, плохую тепло- и звукоизоляцию.Есть выход. Грамотная перепланировка поможет не только придать квартире индивидуальность, но и значительно улучшить и расширить жилое пространство, создав более комфортные условия проживания.
Редевелопмент: что разрешено?
Действующее законодательство не запрещает перепланировку. Главное — соблюдать основные требования, иначе проблем в будущем не избежать. Например, вы все еще можете жить в этой квартире, но сделки купли-продажи, залог и прочее будут невозможны.
Итак, если планируются существенные изменения, это обязательно должно быть отражено в техпаспорте. Например, планировки брежневки дают возможность изменять размеры кухни, совмещать ванную комнату с ванной, а кухню — с одной из комнат. Есть возможность снести стену, совместить спальню с лоджией, но перед началом работ необходимо получить разрешение на проведение таких работ, если это предусмотрено действующим законодательством. Так, для получения разрешений потребуются монтажные работы по устройству теплых полов, демонтажу старой и заливке новой стяжки, перемещению стен (кроме несущих), созданию арок, сносу антресолей, встроенных шкафов-купе.
Когда перепланировка запрещена
Законодательством запрещены такие мероприятия:
- снос несущих стен;
- перенос батарей отопления на балкон и лоджию;
- самостоятельная замена и перенос газовых и водопроводных труб;
- изменение расположения кухни и санузла и перенос их в комнату, расположенную над гостиной соседа;
- увеличение площади кухни и ванной за счет жилых комнат;
- демонтаж межэтажных перекрытий;
- Объединение квартиры с мансардой и использование ее как жилого помещения.
Разрешение на перепланировку не требуется
Ну, а если планируется мелкий косметический ремонт: замена одного типа аккумулятора на другой, установка кондиционера или уличной антенны, а также незначительное перенесение газовой плиты в пределах кухни, то разрешение не требуется . Соответственно, изменения в техпаспорт тоже не вносятся.
Итак, приступая к переделке жилого пространства самостоятельно, всегда лучше обратиться к специалистам. Это поможет не только правильно организовать внутреннее пространство квартиры, но и избежать проблем в будущем.
Брежневка, Сталинка и Хрущев Модифицированная планировка 3-х комнатной квартиры 21 серия
Для трехкомнатной квартиры Огромный выбор дизайнов. Малогабаритные помещения на это не способны.
Большая площадь позволяет реализовать любую смелую идею. Современный дизайн трехкомнатной квартиры лучше доверить профессиональным дизайнерам.
Учитывая состав семьи, рассматривается дизайн-проект, зонирование комнат. Внимание уделяется не только стилистическому решению, но и практичности.
Необходимо в самом начале обратить внимание на двери, чтобы они удобно открывались и не были препятствием для домочадцев. Можно выбрать раздвижные двери. Количество и удобное расположение розеток и выключателей — еще одна важная деталь, о которой забывают.
Чаще дизайн начинается с увеличения площади — перепланировки, но иногда бывает достаточно перегородки. С Запада мода пришла на open space, ее применяют в разных проектах.Не совмещайте только спальни и, конечно же, ванные комнаты.
Правила перепланировки и демонтажа
Можно расширить площадь за счет лоджии, но надо ее хорошо утеплить. Отличная идея Будет теплый пол, на лоджии можно сделать утеплитель.
Недопустимо за счет кухни или смежных комнат увеличивать площадь санузлов. Необходимо учитывать, что в несущих конструкциях категорически запрещается устанавливать проемы более 1.2 м и не ближе 1,5 м к внешним краям стен. Одно отверстие в несущей стене.
На балконах часть под окнами и оконные стекла тоже не подлежат демонтажу. Запрещено делать дверь в ванную из кухни.
Главное не забывать, что перепланировка должна оформляться формально. В противном случае при продаже жилья сразу возникнут проблемы. Все изменения в квартире проводить согласно строительным нормам.
Конструкция из дерева в панельном доме
Вне зависимости от площади жилья нужна рациональность и максимальный комфорт. В жилом доме брусовые дома дешевле, чем в кирпичном. Среди множества стилей не все можно применить в панельном доме.
Дизайн трехкомнатной квартиры в классическом стиле создать в такой квартире практически нереально, предполагается много места, которого нет в панельных домах.С небольшими участками будет смотреться скучно и не органично.
3 комнатная квартира (45 кв.м)
Со средней линией 45 кв. В трехкомнатной панельной квартире лучше использовать минимализм, где немного мебели и элементов интерьера. Так можно освободить площадь.
Выбрав деревенские мотивы, кухня небольших размеров станет уютным милым уголком. Тон теплой гаммы с большим количеством текстиля поможет создать уют и комфорт.
Кто любит хай-тек с необычными формами и линиями, нужно много металлических деталей, новейшие технологии и отсутствие пропорциональности.
При любом стиле важно грамотно организовать пространство. Раньше в панельном доме было невозможно сделать перепланировку. С появлением новых материалов и способов отделки такая возможность появилась.
Комнаты в первую очередь делятся по функциональности. Большой зал — гостиная для приема гостей будет в яркой гамме.Другие помещения могут быть в разных стилях, будут необычными и яркими.
3 комнатная квартира (60 кв.м)
Более сложная задача — это дизайн интерьера трехкомнатной квартиры большой площади. Здесь нужен опытный дизайнер. Комната каждого человека с учетом его желаний и вкуса. Можно применить фантазию.
Часто совмещая гостиную с кухней, получается другой интерьер.
В детской необходимо учитывать возраст ребенка.Для малыша понадобится пеленальный столик, детская кроватка, шкаф.
Для спальни отлично подойдут плавные округлые формы и нежные оттенки.
Все большую популярность приобретают оригинальные дизайнерские проекты 3-х комнатных квартир. Это связано с более доступными ценами на квартиру, чем в частном коттедже.
Большая площадь — главное преимущество, позволяющее воплотить в жизнь разнообразие оригинальных и комфортных интерьеров для большой семьи.
Фото Дизайн трехкомнатной квартиры
.Серия П-44Т в доме может иметь высоту от 9 до 25 этажей, количество подъездов от 1 до 8. Но чаще всего вариант дома 14- и 17-этажный. Используемая при строительстве таких домов технология «закрытого шва» способствует высокой тепло- и звукоизоляции. Стоит отметить надежную систему безопасности: контроль входа в подвал, в распределительном щите, на чердаке.Есть система предупреждения о пожаре или затоплении. Наружные стены таких построек отделаны «под кирпич» и «под натуральный камень».
П-111М серии
П-111М — серия крупногабаритных домов высотой 10, 12, 14 и 17 этажей. Дома этой серии состоят из прямых секций. Отличительная черта застройки — балконы закругленные по краям. При отделке и строительстве фасадов применялись различные материалы — поэтому дома этой серии бывают как панельными, так и панельно-кирпичными.Серия P-111M соответствует всем стандартам огнестойкости и безопасности.
П-44К серии
П-44К — серия 17-этажных домов с 1- и 2-комнатными квартирами. Первый этаж в таких домах нежилой, со 2 по 17 64 квартиры. На участке 4 квартиры: две 2-комнатные и две 1-комнатные. Высота потолков 2,7 м. Преимущество этой серии — просторные кухни. Впервые дома этой серии начали строить в 2005 году.
Пик-1 серия
Пик-1 — новая промышленная серия, в ней использованы современные архитектурные решения: светлые фасады, модернизированный тип оконных блоков, отсутствие межпанельных швов, есть место для установки кондиционеров.Особое внимание в серии PIC-1 уделяется разработке планировочных решений. Вход в подъезд осуществляется без ступенек и пандусов.
Серия дома
Домики серии DomMoms разработаны Центром ГВСУ. Срок строительства домов этой серии 6-12 месяцев, высота домов 6-9 этажей. Облицовка осуществляется немецкой клинкерной плиткой. Производственный процесс полностью автоматизирован. Особенностью этой серии является наличие французских балконов, кроме того, все квартиры оборудованы балконами и лоджиями.Витражи выполняются в алюминиевых переплетах.
Copser серии
Всего представлено 7 серий КООС, среди них: Copes Tower-M, CEP-80, 85, 87, 2000. Различия между этими видами незначительны, чаще всего проявляются в количестве квартир. В основном дома этой серии представляют собой постройки высотой от 10 до 22 этажей, состоящие из нескольких секций. Чаще всего в строительстве встречаются 18- и 22-этажные дома серии КЭП.
Серия Cope Tower
Башня Копе является одноцелевой версией серии Копе-М-Пар.Дома этой серии начали строить в 2008 году. Количество этажей — 23-25 этажей. Первые этажи нежилые, в них есть коммерческие помещения. Особенностью башни «Копе» является наличие лоджий округлой формы, эркеров и полуэретеров. Кроме того, в квартирах этой серии увеличена площадь кухонь, в 2-, 3- и 4-комнатных квартирах появились небольшие окна в коридоре.
П-3М серии
Дома серии П-3М впервые появились в 1996 году. Это 8-17-этажные дома с яркими фасадами и 1-4-комнатные квартиры.Также ведется строительство домов серии П-3М с подземным паркингом. Применены современные системы безопасности, автоматическое включение дымоудаления при пожаре. Двухуровневое водоснабжение.
Флагманский П-3МК серии
Флагманская серия П-3МК является модификацией П-3М. Впервые дома этой серии начали строить в 2004 году. Это 17-18-этажные дома, состоящие из нескольких секций (от 3 до 6). Отличительная особенность — повышенная теплоизоляция вызывных панелей, кроме того, в домах представлена улучшенная планировка квартир, возможна перепланировка.
Евро серии «Па
Панельные дома евро серии «Па» начали строить в 2009 году. Первые этажи занимают как жилые, так и нежилые помещения. Высота здания — 17-25 этажей. Средняя высота потолков 2,61 м, есть возможность увеличения. На этаже от 4 и более квартир.В домах серии Евро отсутствуют проходные комнаты, повышенная звуко- и теплоизоляция.
серии и-155
Серия И-155, разработанная в 2000 году, позволяет строить дома различной конфигурации (как многосекционного, так и башенного типа), высотой от 10 до 24 этажей.Основными элементами этой серии являются трехслойные вызывные панели (их длина 7,2 м), в высотных домах до 8 этажей — монолитные. Толщина стен наружного фасада — 320-400 мм, торца — 440-540 мм.
Евро серии
Евро — панельные малоэтажные дома, производитель в Московской области — ОАО «Завод ЖБИ-6». Основное отличие от других серий — технология отделки фасада, которая гарантирует отсутствие межпанельных швов в постройках, а это способствует хорошей теплоизоляции и долговечности.Есть два основных типа домов этой серии — Евро-8 и Евро-12.
Серия РД-17.04
РД-17.04 — модификация серии РД-90. Дома этой серии имеют высоту от 9 до 17 этажей (наиболее популярны 17-этажные дома), первые этажи преимущественно жилые. Фасады выполняются в разнообразной цветовой гамме, возможна установка вентилируемого фасада. Дома серии РД-17.04 используются как в точечной застройке, так и при строительстве масштабных комплексов.
Limin серии
Серия «Лайм» начали строить сравнительно недавно — в 2014 году. Это многосекционные здания (2 и более секций), высотой до 25 этажей. При строительстве применяется бесшовная технология утепления фасадов. Основное отличие этой серии в планировке, в квартирах размещаются гостиная и кухня.
Domrick серии
Domrick — серия панельных домов, разработанная компанией DSC-1. Впервые дома этой серии начали возводить в 2014 году, но проект разрабатывался еще в 2012 году вместе с испанским архитектором Рикардо Бофиллом.Особенности построек: ровный фасад, функциональная планировка, места для кондиционеров. Максимум в таких домах 17 этажей. Представлены 1-, 2- и 3-комнатные квартиры.
Град-1м серия
Серия ХРАД-1М разработана ДСК «Град». Дома строятся по модульному принципу, существует множество вариантов планировочных решений. Высота здания — до 17 этажей. Здания этой серии отличаются высоким уровнем шумо- и теплоизоляции, кроме того, можно отметить высокое качество отделки и многообразие фасадных решений.
П-44ТМ / 25 серии
В 2005 году началось строительство домов серии П-44ТМ / 25. Основное отличие от предыдущих серий (П-44Т и П-44ТМ) — увеличение ширины ступени (с 3,6 до 4,2). Это привело к увеличению площади квартиры, кроме того, в 3-х комнатных квартирах появился гостевой санузел. Все помещения в домах серии П-44ТМ / 25 изолированные. Этажи с 23 по 25 этажи, первые этажи могут быть как жилыми, так и нежилыми.
Слово «хрущевка» вызывает неприглядные ассоциации, являясь объектом постоянного колющего дела.Но значит ли это, что такая среда обитания обязательно должна быть типичной, тесной, унылой? Несмотря на то что! Сегодня любой желающий может сделать из своей «хрущетки» уютные современные апартаменты. Достаточно обратиться к опыту специалистов, чтобы понять, какие чудеса творится с ремонтом собственной квартиры. Неважно, будете ли вы делать перепланировку или ограничитесь косметическим ремонтом. Современный дизайн хрущевки или панельного дома Советский образец из 3 комнат волшебным образом преобразит ваше жилье, сделав его функциональным, комфортным, стильным.
Важные особенности
Здания хрущевской эпохи возводились как временное жилище, поэтому не могут похвастаться особым удобством. Поэтому их владельцам часто приходится прибегать к разного рода трансформациям для повышения комфорта.
Следует отметить, что при условии регулярного капитального ремонта здание построено еще в хрущевскую эпоху еще много лет. Поэтому хозяевам имеет смысл тратить силы на улучшение жилищных условий с помощью дизайнерских уловок, добиваясь максимального комфорта.
Для данного типа жилья характерны следующие особенности:
- небольшая высота потолков;
- наличие проходных комнат;
- малогабаритная квартира;
- закрыть кухню;
- санузел совмещенный;
- низкая звуко- и теплоизоляция.
ВАЖНО! Внутренние перегородки хрущевки не несущие, что позволяет спокойно снести их при перепланировке.
Типовые варианты планировки
Существует несколько вариантов типовой планировки трехкомнатной хрущевки:
- «Спасонка»: одна просторная комната плюс две маленькие.Наименее удобный вариант радикальной перестройки;
- «Книга»: две просторные смежные комнаты плюс одна небольшая раздельная. Перепланировка потребует больших затрат площади;
- «Трамвай»: проезжающее помещение, напоминающее трамвайный салон, часто построенная линия. При перезаписи необходимо поставить дополнительные разделы для изоляции;
- хрущевок 60 м2: Все комнаты полностью изолированы друг от друга. Комфортный вариант, никаких кардинальных изменений может не потребоваться.
В зависимости от разновидности выбираются варианты организации пространства.Интернет предоставит желающим огромное количество фотографий самых разных проектов, среди которых легко найти подходящие. Вы также можете обратиться к профессиональному дизайнеру для создания уникального проекта именно для вашего случая.
Особенности Редевелопмент
Редевелопмент — радикальный способ по-настоящему преобразить внешний вид вашего дома. Изменить размер жилища, конечно, не получится. Но расширить полезную площадь такими методами вполне реально.
Способы эксплуатации Их два:
- Снести все перегородки, не несущие, превратив квартиру в квартиру-студию.Обозначьте зоны кухни, столовой, гостиной, выделите шкаф, детскую. Для разграничения зон используются световые перегородки, многоуровневый пол, цветовые переходы, разные виды покрытий и т. Д.
- Полное частичное объединение: кухня с гостиной, ванная с коридором, балкон со спальней и т. Д.
ВАЖНО! Расширяя гостиную на балконе, убедитесь, что она способна выдержать дополнительную нагрузку!
Дополнительно можно создать эффект простора, расширив оконные проемы.Заменив старые окна на современные стеклопакеты, вы улучшите теплоизоляцию своих квартир, а в просторные окна будут попадать солнечный свет, воздух. Подоконник легко превратить в компактный встроенный стол. Посмотреть, как это выглядит, вы можете на фото из интернета.
Ссылка на sanuenus
Полезная площадь может быть увеличена за счет ванной. Вот и возможные варианты замены:
- демонтировать перегородку между ванной и туалетом;
- заменить массивную ванну на современную душевую кабину.Это позволяет разместить на месте отдыха. стиральная машина, освобождающая место на кухне;
- увеличьте высоту дверного проема: благодаря такой стойке вся ванная комната будет казаться выше;
- Расширить ванную комнату за счет части коридора, встроенного шкафа или кладовой. Понадобится дополнительная гидроизоляция.
ВАЖНО! Увеличивать санузел, захватывая территорию жилого помещения, запрещено санитарными нормами!
Настоящая катастрофа трехкомнатной хрущевки — это смежные комнаты.На фото они выглядят ужасно, а дома уж тем более: если с вами проживает несколько членов семьи, отдых в проходящем помещении становится невозможным. Уменьшив часть площади одной из жилых комнат, можно провести коридор до конца квартиры. Проходы в ванную и кухню расположены по обе стороны коридора, изолируя квартиры.
Все должно быть по закону
Планируем капитальный ремонт, консультируемся со специалистами. Они подскажут, какие изменения можно вносить, а какие категорически запрещать.
При составлении проекта необходимо учитывать:
- в некоторых случаях демонтаж стен может быть запрещен;
- любое изменение конфигурации стен необходимо согласовывать и регистрировать; №
- отнести санузел нельзя, так как это может повредить канализацию во всей многоэтажке;
- При наличии газовой плиты совмещать кухню и гостиную запрещено. Поставьте электрическую плиту или воспользуйтесь легкой перегородкой.
Для создания проекта могут потребоваться услуги профессиональных дизайнеров. Особенно, если вы собираетесь изменить конфигурацию стен квартиры. Обращение к специалистам гарантирует вам грамотный проект, согласовать который намного проще.
Необходимо знать, что любое изменение макета необходимо согласовывать и регистрировать. Перед началом работ нужно собрать пакет необходимых документов, получить лицензионный проект будущего жилья, отвечающий нормам строительства.
Как увеличить пространство?
Даже если вы не планируете заниматься сносом стен, полезная площадь «Трешки» действительно увеличится, грамотно распорядившись существующей территорией:
- Избегайте лишних настроек, не загромождайте жилье. Любой предмет, использованный в дизайне квартиры, должен быть функциональным;
- Сделайте акцент на главном: амбициозные шкафы, грамотная расстановка мебели, правильное освещение;
- навесить зеркала, установить прозрачные стеклянные поверхности;
- Кладовую можно превратить в удобную гардеробную, поставив полки, вешалки, сундук для хранения мелочей.Гардеробная станет отличной заменой шкафа-купе, позволяя значительно сэкономить место;
- Лоджия или балкон может быть рабочим кабинетом, уютным уголком для чаепития или миниатюрным тренажерным залом. Необходимо утеплить лоджию или балкон, чтобы можно было пользоваться им круглый год;
- вместо обычных распашных дверей лучше установить купе или гармошку. Это позволяет выиграть до 1 м2;
- Освещение должно быть ярким, обильным. Вместо одной массивной люстры используйте многоточечные светильники.Способы их расположения легко найти на фото в Интернете. Хорошо освещенные комнаты всегда выглядят просторными.
Выберите стиль интерьера
При выборе дизайна интерьера для трехкомнатной хрущевки на первый план выходит функциональность. Ведь территория небольшая, значит, ее нужно правильно заказывать. Поэтому пышные стили подразумевают обилие декора, здесь неуместны.
Лучшим решением будет эффектный экономичный модерн в стиле минимализм.Это не просто великолепно выглядит, но и позволяет максимально эффективно использовать жилье.
Основные черты минимализма:
- общий фон выполнен в светлых тонах;
- простая герметичная конструкция;
- зеркало, стеклянные элементы, добавляющие воздуха;
- деление территории на функциональные зоны; ,
- вместо наливных шкафов применяют компактные вертикальные конструкции под потолком;
- Многофункциональная мебель-трансформер: раздвижные столики, навесные шкафы, аккуратные прикроватные тумбочки;
- Мебель расставляется по углам, освобождая центр комнаты;
- осветительные приборы замаскированы под возможные;
- как можно больше естественного света.
Изучив фото дизайн-проекты в стиле минимализм, вы сможете почерпнуть много полезных идей, одновременно убедившись, что этот стиль отлично смотрится.
Выбрать настил
Первоначальный настил хрущевки — деревянные доски, которые рассчитаны на срок службы не более 20-30 лет. Их нужно заменить, особенно если снимаете капитальный ремонт квартиры. Если вы собираетесь использовать линолеум или ламинат, необходимо предварительно удалить старые доски, выровнять пол.
Отличный пол в 3-х комнатной квартире — плитка. Для его укладки не нужно дополнительно выравнивать поверхность пола. Благодаря фото из Интернета вы сможете подобрать красивую плитку, не выходя из дома.
Если вы объединили свои три комнаты в студии, обязательным условием является зонирование. Невероятно эффектно смотрится многоуровневый пол с разным покрытием. Стены также окрашивают в разные цвета (используйте обои, краску или декоративную штукатурку). В результате получается стильный просторный дом с обилием воздуха и света.
Выбираем потолок
Вся известная хрущевская проблема — низкие потолки. Исправить столь существенный недостаток можно только умелым проектированием. Это обстоятельство диктует свои правила в дизайне:
- отказаться от объемных люстр, заменив их несколькими светильниками с яркими точечными светильниками;
- Светлые оттенки создают ощущение простора, дополнительной высоты в комнате. Избегайте темных цветов;
- многоуровневый дизайн из гипсокартона задает стиль, делая квартиры невидимыми сверху;
- создать эффект визуального увеличения высоты поможет глянцевая растяжка или зеркало;
- Натяжные и гипсокартонные конструкции во время монтажа воруют несколько сантиметров высоты, поэтому в особо низких помещениях от них лучше отказаться;
- Вместо натяжных конструкций в дизайне лучше предпочесть правильно подобранные обои или краску.Они создают иллюзию высоты, ощущение простора, легкости.
Выбрать мебель
Грамотно подобранная мебель также позволит выиграть значительную часть жилого пространства, поможет создать стильный образ вашего дома.
Есть несколько правил выбора обстановки для малогабаритных квартир:
- в первую очередь должна быть функциональность, только потом — внешний вид;
- предпочитаю постановку четких геометрических форм, с гладкой поверхностью;
- Priority — Мобильность: раскладная кровать или шкафчик, компактный комод;
- столы, кровати плотно прилегающие;
- для экономии стоит выбрать вместо стульев компактные мобильные депутаты;
- откажитесь от массивных конструкций: они требуют слишком много места;
- Сохранить место помогут высокие шкафы: за счет увеличения высоты можно уменьшить их глубину без ущерба для полезного объема шкафа.
ВАЖНО! Необязательно выбирать лишние шкафы: им нужно много места.
Выберите цветовую гамму
Правильно подобранная цветовая гамма зрительно расширит пространство даже небольшой квартиры. В типичной хрущевке мало свободного места. Поэтому необходимо внимательно отнестись к выбору оттенков мебели, пола, стен, покрытия потолка:
- светлые тона создают иллюзию большего объема;
- мелкий узор на обоях делает комнату просторнее, большой — уменьшает пространство;
- Лучше отказаться от использования в дизайне насыщенных ярких цветов: они зрительно уменьшают пространство, заставляя ваше жилище выглядеть маленьким и тесным.В качестве ярких акцентов в дизайне квартиры используйте подушки, картины, фотографии и сувениры;
- глянцевый натяжной безмозглый зрительно расширит пространство, если цвет его более светлый из стен; №
- Отдельным цветовым элементом дизайна может быть объемная штукатурка, обои с декоративным орнаментом; №
- для детей Оптимальными нежными пастельными тонами являются: успокаивающе воздействуют на ребенка;
- Маленькая кухня покажется просторной, если использовать зеркальные поверхности — например, холодильник и шкафы.
Изначально своеобразное расположение комнат в квартире хрущевских времен не способствует комфортному проживанию. Поэтому следует продумать дизайн трехкомнатной хрущевки. Основной целью ремонта должна быть функциональность — конечно, не в ущерб отличному внешнему виду. Тогда старая «хрущица» превратится в уютное и комфортное жилье для всех ее жителей, которым можно гордиться.
На фоне усиления темпов роста многоквартирного дома увеличивается разнообразие планировок жилья.Особое место здесь занимает трехкомнатная квартира. В грамотно организованном жилом пространстве можно надолго отложить людей любых возрастных категорий с разными вкусами. Обладая небольшими дизайнерскими навыками и ориентируясь на тенденцию к изменению дизайнерских направлений, вы можете улучшить планировку практически любой трехкомнатной квартиры.
Планировка квартир в новостройках
Высоким спросом пользуются многодетные семьи, используются просторные жилые площади. Размеры и организация пространства таких трехкомнатных квартир могут быть самыми разнообразными.Это жилье предусмотрено проектом как в кирпичных, так и в панельных домах.
Самый актуальный вариант планировки новой трехкомнатной квартиры — студия. Допускается формировать себе жилое пространство, возведя дополнительную перегородку.
В новостройках премиум-класса квадратных метров на порядок больше, поэтому часто предусматривается несколько санузлов.
Рядом с кухонным помещением выделено место для туалета по всем правилам современного дизайна.Под балкон или лоджию отводится достаточная квадратура.
Современная трехкомнатная квартира в 90% случаев по окончании строительства передается будущим хозяевам без перегородок. Это сделано для создания возможности собственного моделирования области.
Широко используется дизайн типичных чешских квартир, состоящих из трех комнат. Их площадь составляет 64 квадратных метра. м, а главное отличие — тесная коридорная система с кладовыми. Часто это помещение переделывают под гардеробную.Балкон и лоджия достаточно большие, а в связи с тем, что количество носителей сведено к минимуму, на них разрешено провести желаемую перепланировку.
В современных просторных квартирах используются различные схемы организации пространства. Самые распространенные из них:
- «Самолет» или «Спасонка». Окна помещений «смотрят» на разные стороны здания;
- вариант с помещениями, где две из них сделаны смежными, а третья — изолированными;
- Все 3 комнаты расположены отдельно.
Часто такую планировку трехкомнатных квартир нередко выбирают так, чтобы в каждой изолированной комнате был свой санузел и балкон. Особое внимание уделяется освещению. Для его максимального использования предлагается проект строительства французских балконов.
Такие квартиры чаще всего угловые.
Планировка кварталов вторичного жилого фонда
Сюда входят 3 разновидности построек.
В Москву и другие города России эти кирпичные дома «пришли» в 50-е годы.Для квартир, расположенных в таких домах, характерны 3-х метровые потолки, 3-х метровые потолки, отдельно размещенные комнаты, раздельные ванны и туалет, большая гостиная и арки.
«Хрущевка»
Строительство таких домов велось до середины 80-х годов. Изначально в квартирах были низкие потолки, совмещенный санузел, небольшая кухонная комната. Хрущевка также имела недостаточный уровень теплоизоляции. Позже в них начались массовые перепланировки, так как большинство перегородок не были вагонными.
Сейчас проект «Хрущевки» кардинально поменяют, сделав из кладовки гардеробную комнату или превратив всю квартиру в студию. Полностью заменяют старое напольное покрытие на плитку, а соседние комнаты (например, спальня и балкон) объединяют, если это не запрещено проектом.
«Брежневка»
Это несколько улучшенный вариант «хрущевки». Помимо прочего сюда добавлены антресоль и ниша под кухонным окном, предназначенные для хранения продуктов.Увеличивается количество санузлов, в том числе раздельных. В такой квартире комната размещается по принципу «самолет» или «прицеп».
Нюансы созданы современной планировкой
Улучшенная планировка всегда предусматривает кухонное пространство площадью более 15 квадратных метров. м, а в ванной следует разместить мини-сауну. При этом значение ширины полосы должно начинаться от 1,2 м.
На примере этой квартиры, вид сверху которой изображен на схеме, на первом этаже можно сформировать гостиную с кухней, а на втором — спальню.На обоих этажах лучше предусмотреть несколько санузлов — как для хозяев, так и для возможных гостей.
Также необходимо учитывать дополнительные важные моменты.
Выбранный стиль
Их хватает. Например, можно совместить скандинавскую сдержанность с чердаком или использовать хай-тек. Но наиболее распространен классический стиль. Ему присущи следующие оттенки:
- молочный;
- разбавленный коричневый;
- пастельные тона.
Для придания изысканности такому интерьеру добавляют яркие детали в виде мебели, панно на стене.
Самое удачное решение — объединить гостиную и кухню в одном оттенке.
Sanuses Decor B. Современные квартиры сведены практически к нулю.
Подборка предметов интерьера
Подбираются в едином стиле. Например, если изначально приобретаются стеллажи округлой формы, то светильники должны быть такими же, а проемы — арочными.
Разнообразить декор можно необычными вещами, например, круглая кровать или зеркало, словно из квадратов, украсить все пространство небольшим японским атрибутом. При этом нет необходимости загромождать квартиру мебелью. Напротив, чтобы зрительно расширить площадь своего дома, лучше отказаться от крупных вещей.
Детям нужно выбирать все, исходя из возраста ребенка. Он отлично впишется и сэкономит место для игр одной двухъярусной кровати вместо двух обычных.
Необходимо учитывать, что если в семье есть человек, работающий на дому, ему понадобится личный кабинет. Они могут быть одной из комнат, так как 3-комнатные квартиры достаточно просторны, и в среднем их площадь составляет 56-80 кв. М. Также в спальне для работы часть пространства отделяется ширмой.
Ванную комнату лучше выбирать нестандартной формы. Это позволит вам иметь дополнительное место для установки душа и стиральной машины.
Как выбрать жилье с планировкой
Необходимо определить необходимую функциональную площадь помещения.
На плане квартиры ниже показан вариант с размерами, подходящий для семьи из 3-4 человек. Здесь большая прихожая с платяными шкафами для одежды и обуви. Каждая комната изолирована. Кухня и раздельный санузел (при необходимости его можно сделать единым) расположены в левой части квартиры, а в правой — 2 спальни разной площади. В самом центре находится гостиная, которую при желании можно сделать частью кухни.
Чтобы грамотно выбрать будущее жилье, необходимо обратить внимание на:
- размеры и расположение комнат;
- количество окон;
- наличие (отсутствие) балконов (лоджий), их количество и размеры;
- удаленность квартиры от мусоропровода и лифта;
- Развитие инфраструктуры района.
Если квартира соответствует необходимым требованиям по всем вышеперечисленным пунктам, то это отличный вариант. Если долго не удается найти ничего подходящего, то можно самостоятельно обустроить пространство под свои нужды с учетом всех приведенных нюансов.
Сегодня, в период глобальной застройки городов, довольно большой выбор различных типов жилья с самой разнообразной типовой планировкой.
Можно найти и большие квартиры с просторными лоджиями, и апартаменты с двумя отдельными ванными комнатами, и даже жилье премиум-класса, которое представлено двухэтажными экземплярами.
Благодаря такому широкому выбору каждый может выбрать жилье желаемого типа.
Самым популярным видом на благоустройство дома по-прежнему остается планировка 3-х комнатной квартиры, рассчитанная на большую семью.
Лучшие квартиры представлены «Трешки» свободной планировки. Это самые удобные и стильные жилые метры кв.
Если все пространство растопить правильно, то люди разных поколений с совершенно разными вкусами и характером смогут комфортно проживать на 130 м².Это улучшенная планировка 3-х комнатных квартир.
Планировка 3х комнатных квартир в новостройках
Как правило, сегодня в новых домах ванная располагается рядом с маленькой комнатой. Именно поэтому желательно сделать из нее небольшое помещение для спальни.
Главное определиться, какой элемент в спальне станет акцентным. Это может быть и шкаф, и спальное место.
Однако, если шкаф можно разместить в гостиной, комната, безусловно, будет центром.
Все жилые дома в новостройках имеют достаточно большую площадь, поэтому планировка 3-х комнатных квартир с размерами довольно большая, в первую очередь, свободное расположение помещений.
В спальнях больших квартир можно разместить не только необходимую кровать и систему хранения вещей, но и множество других предметов функциональной мебели. Здесь вы можете создать и воплотить в жизнь все дизайнерские идеи.
Тем, кто не любит все стандартное и привычное, стоит обратить внимание на спальню-спальню.
Такая кровать выглядит очень стильно и модно. Завершить необычный интерьер можно необычной подсветкой или овальным гипсокартонным дизайном на потолке.
Разработка дизайн-проекта 3-х комнатной квартиры начинается с пожеланий собственников. Планировка 3-х комнатной квартиры и ее дизайн выполнены в светлых тонах с некоторыми цветовыми акцентами.
В таком интерьере царит очень спокойная и уютная атмосфера. Детские комнаты нужно оборудовать с учетом возрастных потребностей каждого ребенка.
Преимущества современной планировки квартиры
Самым привычным в планировке панельного дома 3-х комнатной квартиры была квартира проходного типа.
Здесь самая большая комната находится возле кладовой, через которую можно попасть в спальню.
Чтобы расширить пространство, многие снесли складское помещение и построили совершенно новую перегородку. В результате действовали 2 комнаты и большой темный коридор.
Современные «трешки» стали намного удобнее и комфортнее, ведь в них уже появились отдельные санузлы и жилые комнаты, увеличилась площадь кухонного пространства и санузла.Практически в каждой квартире теперь есть балкон или лоджия.
Привычная 3-х комнатная хрущевка, планировка которой также легко осуществляется, за счет чего квартиры удобные. Зоналить пространство здесь уместно, используя цвет и фактуру материалов.
Сегодня планировка квартир в новых домах стала комфортной. Подросли обычные потолки 2,5 метра, теперь их высота 3 метра.
Также можно встретить экземпляры с индивидуальными планировщиками или однокомнатными квартирами, не имеющими внутренних стен, что дает возможность создавать неповторимые индивидуальные интерьеры.
Если вам не удалось найти подходящее жилье, вы можете самостоятельно заняться перепланировкой, следуя простым методам и принципам.
Первое, на что следует обратить внимание — это функциональное назначение помещения. Так из привычной спальни можно сделать спальню-гостиную или рабочий уголок. Затем с помощью приемов зонирования комнату делят на секции и обозначают их.
Любое готовое жилье не всегда в конечном результате подходит для жилья.
Таким образом, благодаря фото планировке 3-х комнатной квартиры и советам профессионалов любой желающий может создать жилище своей мечты.
Фото лучших идей планировки трехкомнатной квартиры
000
0003
0003
как улучшить жилищные условия?
Каждый из нас стремится к комфорту.Комфортное проживание, уют и комфорт помещения — главные составляющие успешной жизни в мегаполисе. Полвека назад особой популярностью пользовались однотипные дома: сталинки, хрущевки, галифе. В них выросла половина жителей страны. И пусть сегодня рынок недвижимости предлагает большой выбор новостроек на любой вкус и кошелек, квартиры старого фонда по-прежнему продаются и покупаются. До сих пор сохранилась трехкомнатная брежневка, планировка которой предполагает отсутствие сквозных помещений.И стоит на треть дороже новых, несмотря на отсутствие лифта, мусоропровода и изношенных коммуникаций.
Сталинки, хрущевки, брежневки — привет из далекого прошлого
Первые хрущевки появились в 50-х годах прошлого века. Они отличались дешевыми строительными материалами, возводились достаточно быстро и позволяли переселить миллионы семей, которые после войны жили в бараках и коммунальных квартирах. Про комфорт-то особо и не задумывался.В отличие от квартиры-гофрировки, хрущевка отличается смежными комнатами и очень маленькой кухней. Такие дома не выше 5 этажей и без отличительных знаков на фасаде. Сначала они планировались как временное жилье, чтобы через 20-30 лет каждый мог получить большую светлую квартиру. Как видите, сегодня эти планы не реализуются, а жизнь Хрущева продолжается.
В середине 60-х появилась так называемая грудь. В отличие от хрущевок, они строились в основном из железобетонных панелей или силикатного кирпича.Конечно, при этом значительно снизилась их теплоизоляция по сравнению с хрущевками, но они выиграли за счет увеличения жилплощади. Так, брежневка 2-комнатная, планировка которой предполагала отсутствие смежных комнат, по жилой площади приравнивалась к трехкомнатной хрущевке. И это были не обычные пятиэтажки, а дома в 9-16 этажей с лифтом и мусоропроводом. Такая планировка галифе пошла на пользу и за счет увеличения площади кухни и высоты потолков.И на сегодняшний день большинство домиков в спальных районах — все та же грудь.Еще один не менее популярный вид собственности прошлого века — сталинской эпохи. Строить их начали в 30-х годах ХХ века. Они славятся высокими потолками, просторными комнатами, их фасады часто украшали скульптуры, балюстрады и колонны. Планировка таких квартир существенно отличалась от планировки бриджей и хрущевок, а площадь однокомнатной квартиры в таком доме достигала 50 квадратных метров.м. Но это же 2-х комнатная брежневка или 3-х комнатная хрущевка!
До сих пор покупая престижную квартиру-сталинку, они намного выше и существенно выигрывают от своего местоположения. В основном это центральные районы города, удаленные от промышленных зон.
Перепланировка квартиры: мелика
Так человек устроен — ему всегда чего-то мало, всегда нужно что-то менять. А в случае с жильем и подавно. Указывая на характерные различия в компоновке галифе, хрущевки и сталинок, нельзя не отметить их общую проблему: однородность, герметичность, слабую тепло- и звукоизоляцию.Есть выход. Грамотная перепланировка поможет не только придать квартире индивидуальность, но и значительно улучшить и расширить жилую площадь, создав более комфортные условия проживания.
Редевелопмент: что разрешено?
Действующее законодательство не запрещает проводить перепланировку. Главное — соблюдать основные требования, иначе в дальнейшем проблем не будет. Например, вы еще можете жить в этой квартире, но сделки купли-продажи, залога и т. Д. Будут невозможны.
Итак, если планируются существенные изменения, это обязательно должно быть отражено в техническом паспорте. Например, планировка галифе позволяет изменять размеры кухни, совмещать ванную комнату с ванной, а кухню — с одной из комнат. Есть возможность снести стену, совместить спальню с лоджией, но перед началом работ необходимо получить разрешение на проведение таких работ, если это предусмотрено действующим законодательством. Так, в разрешительной документации потребуются монтажные работы по устройству теплых полов, демонтажу старых и заливке новой стяжки, перемещению стен (кроме несущих), созданию арок, сносу антресолей, встроенных шкафов.
Когда перепланировка запрещена
Законодательством запрещены такие действия:
- снос несущих стен;
- перенос батарей отопления на балкон и лоджию;
- самостоятельная замена и транспортировка газовых и водопроводных труб;
- изменить расположение кухни и санузла и перенести его в комнату, расположенную над гостиной соседа;
- увеличение площади кухни и ванной за счет жилых комнат;
- демонтаж межэтажных перекрытий;
- Объединение квартиры с мансардой и использование ее как жилого помещения.
Разрешение на перепланировку не требуется
Ну а если планируется небольшой косметический ремонт: замена одного типа аккумулятора на другой, установка кондиционера или уличной антенны, небольшой перенос газовых плит в пределах кухни, то авторизация не требуется. Соответственно, изменения в техпаспорт тоже не вносятся.
Итак, приступая к переделке собственного жилого пространства, всегда лучше обратиться к специалистам. Это поможет не только правильно организовать внутреннее пространство квартиры, но и избежать проблем в будущем.
p>Типовой план многоэтажного дома 91 серии. Типовая серия жилых домов в г
Квартира общей площадью 35 кв.м, жилая 18,3 кв.м, кухня 9 кв.м.
Двухкомнатная квартира на улице Плеханова 10
Общая площадь квартиры 44 квадратных метра, жилой 29 квадратных метров, кухни 6 квадратных метров. В квартире капитальный ремонт
.Двухкомнатная квартира на Юбилейной улице
Площадь квартиры 46.М., Жилая 32,5 (холл 17 и спальня 15,5) кв. Площадь кухни 5,7 кв.м, стандартная высота потолков 2,52 метра.
Двухкомнатная квартира на улице Вермишева
Площадь квартиры 43,4 кв.м, холла 17,2 кв.м, спальни 12,8 кв.м, кухни 5,4 кв.м. Высота потолка стандартная 2,5 метра.
Трехкомнатная квартира улучшенной планировки
Общая площадь 50 кв.м, изолированные комнаты 18 кв.м и 12 кв.м, кухня 7 кв.м.Квартира чистая, аккуратная, светлая. Пластиковые окна, новые межкомнатные двери
Трехкомнатная квартира на Студеновской улице
Хорошее состояние, чисто, аккуратно, новая входная дверь, окна металлопластик, балкон застеклен, санузел раздельный, кафель.
Квартира на Сиреневом проезде
Дом, в котором мы предлагаем Вашему вниманию квартиру, расположен по проезду Сиреневый, дом № 6 — этот дом находится в центре микрорайона, на равной удаленности от всех благ инфраструктуры.
Нестандартная квартира в двенадцатиэтажном кирпичном доме
Нестандартная квартира в двенадцатиэтажном кирпичном доме в 21 мкр по проспекту Победы, дом 116. Дом 1998 года постройки, расположен по переулку
Четырехкомнатная квартира в двенадцатиэтажном кирпичном доме
Квартира расположена на втором этаже, общая площадь 94,6 квадратных метра, жилая площадь комнат 50 квадратных метров.
Четырехкомнатная квартира на улице Льва Толстого
На этой чудесной улице продается четырехкомнатная квартира на девятом этаже девятиэтажного кирпичного дома общей площадью 70 квадратных метров
Трехкомнатная квартира на улице Р. Ибаррури
Квартира 91 серии, 1980 года постройки, расположена на 4 этаже 5-ти этажного панельного дома
.Четырехкомнатная квартира по пассажу Сиреневый
Продается 3х комнатная квартира в проездном Сиреневый, д.6, дом 1984 года постройки, 91 серия.
Двухкомнатная квартира на улице Филипченко
Квартира расположена на 6 этаже 9-ти этажного панельного дома по ул. Филипченко, дом 8/2, 35 / 18.5 / 9, комната 18 кв.м, сан. отдельный узел
Однокомнатная квартира в 15 мкр.
Квартира расположена на пятом этаже панельного пятиэтажного дома (однокомнатный Москвич), площадь квартиры 30.1 м.кв.
2-комнатная квартира-студия индивидуальной планировки
Продается 2-комнатная квартира-студия индивидуальной планировки, в кирпичном доме. Квартира расположена на девятом этаже десятиэтажного кирпичного дома.
Две комнаты в четырехкомнатной квартире на Невском
Площадь квартиры 81,3 кв.м, жилая 61 кв.м, продаем 2 комнаты площадью 17,1 и 12.8 квадратных метров.
Двухкомнатная квартира в поселке Сухоборье
В квартире никто не прописан, чистая продажа, возможна ипотека, возможен торг. Транспортное сообщение с Липецком — автобусом 2 раза в день.
Двухкомнатная квартира на Бородинской улице
Квартира общей площадью 47,5 кв.м, 2 изолированные комнаты по 16 кв.м и 13 кв.м, кухня 8 кв.м.
Трехкомнатная квартира улучшенной планировки на Соколе
Квартира расположена на 1 этаже 9-ти этажного кирпичного дома. Квартира общей площадью 47 кв.м., 2 изолированные комнаты по 16 кв.м. и 13 кв.м., кухня 8 кв.м.
Двухкомнатная квартира в престижном районе Соколского района
Высокий 1 этаж кирпичного дома 2006 года постройки. Общая площадь 52 кв.м., 2 изолированные комнаты 16.4 кв.м., 14.5 кв.м.
Пятикомнатная квартира улучшенной планировки на Соколе
Продается 5-комнатная квартира улучшенной планировки на Соколе! 3-й этаж 5-ти этажного панельного дома, общая площадь 81кв.м, жилая 55кв.м, кухня 8кв.м, жилые комнаты 17, 10, 12, 8, 8 кв.м. соответственно.
«К».
Нам не удалось найти точную информацию о серии домов, относящихся к « ленинград ». Так, например, на сайте гарантплюс48.ru описывает Ленинград так:
Дома ленинградской планировки (или Ленпроект) построены в 70-80-х годах ХХ века. Начало строительства домов этого типа ознаменовало переход на более комфортный и современный уровень жилья. Материал производится в домашних условиях — или. Такие дома бывают в виде «длинных» — многоэтажных домов. Девятиэтажные дома ленинградской планировки очень легко спутать с 91 серией, единственное внешнее отличие — наличие лоджии с фасада дома (видно на 1 и 3 фото).Как правило, особенность домов с квартирами ленинградской планировки заключается в том, что окна (кроме угловых) выходят в одну сторону. То есть все комнаты расположены одной стороной вдоль длинного широкого коридора. Несущие межквартирные стены, что обеспечивает отличную звукоизоляцию. Межкомнатные перегородки не несущие, но в связи с особенностями планировки позволю вам перепланировать квартиру на свой вкус. Большой плюс ленинградской квартирной планировки — большая (по сравнению с большинством улучшенных квартир) с / у.В народе эта планировка называется « ленпроект » или « ленинград ». В Липецке примером ленпроект может служить дом № 7 и 8 по ул. 9 мкр.Особенности домов ленинградской планировки (Ленпроект):
- 1 ком. — 32-36 кв.м.
- 2 комн. — 45-49 кв.м.
- 3 комн. — 60-68 кв.м.
- 4 комн. — 78-85 кв.м.
Общие фотографии многоквартирных домов планировка ленинградской :
- Площадь кухни от 8 до 10 метров.
№- все квартиры (кроме угловых) имеют односторонние окна.
- Балкон длиной 4-4,5 метра.
- отдельный
- высота потолка 2,7 метра.
- есть лифт и желоб.
- обычно расположены в центральных районах города
Там же приведены схемы планировок:
1 комнатная
2 комнатная
3 комнатная
3 комнатная угловая
При этом Красноярские фирмы arbis и Express, описывающие « ленинград » », Они дают хоть и похожие, но все же разные описания и схемы.При этом также не указывается конкретная серия домов:
Принципиальные отличия: кухня — 7–9 кв.м, санузел раздельный. Комнаты тоже раздельные. Но бывают исключения. Так проходные комнаты делаются в 4-х комнатных, а в некоторых 2-х комнатных, которые расположены над сводами.В Красноярске массовая застройка Ленинграда проводилась в Ветлужанке, Первомайске, в меньшей степени в районах Копылова, Пашенного и Северного. А единичные экземпляры «Ленинграда» можно встретить практически во всех районах города.Просто никогда их не возводили в Центре города, Академгородке и в районе Подъема.
Характеристика:
Комнаты: раздельные. (См. Исключения)
Общая площадь:
1 комнатная — 34-36 кв.м.
2 комн. — 46-49 кв.м.
3 комн. — 62-68 кв.м.
4-комнатная — 64 кв.м. (только на первых этажах и в угловых входах)
Кухня: 8-9 кв.м. (в угловых квартирах 7 кв.м.)Санузел раздельный.
Материал стены: панель.
Высота дома: 5 этажей.
Высота потолка: 255 см.
Наличие желоба.
Газификация: нет.
1-комнатная
Пятиэтажные панельные дома серии 1-464
Крупнопанельные 4-5-этажные жилые дома серии типовых проектов 1-464 — самые распространенные быстровозводимые дома первого поколения. В основе решения домов этой серии лежит система конструкции поперечных стен.
Основным несущим каркасом зданий являются поперечные железобетонные стены, расположенные с шагом 3,2 и 2,6 м, в связи с чем дома этого типа называют домами с «узким» шагом поперечных несущих стен. На их основе лежат железобетонные плиты размером «по комнате». Они также опираются на внешние и внутренние продольные стены, которые воспринимают часть вертикальной нагрузки, одновременно обеспечивая продольную жесткость здания.
Плиты перекрытия, уложенные на этапе 3.2м спроектированы и работают по контуру. Поскольку все внутренние стены, разделяющие комнаты, несут нагрузку от полов и вышележащих этажей, невозможно сдвинуть эти стены и тем самым изменить ширину комнат. По этой же причине исключен вынос наружных стен с шагом 3,2 м, без обеспечения опоры плиты перекрытия по короткой внешней стене.
Наружные стены выполняются из панелей — трехслойных, состоящих из двух железобетонных оболочек и слоя утеплителя между ними, или однослойных панелей (из легкого бетона).Внутренние несущие стены толщиной 12 см и плиты перекрытия толщиной 10 см представляют собой железобетонные перекрытия сплошного сечения. Кровля — совмещенная с рулонной мягкой кровлей или чердак с кровлей из гофрированного асбестоцемента.
При перепланировке домов серии 1-464 возникает необходимость устраивать новые или расширять существующие проемы в поперечных стенах. В ограниченной степени это возможно, но требует подтверждения расчетами.
При улучшении здания плиты перекрытия не подлежат разборке.Однако при надстройке здания плиты перекрытия над существующим пятым этажом можно частично демонтировать. Возможна установка в них новых проемов, но при больших размерах таких проемов может потребоваться усиление перекрытия.
В рассматриваемой серии балконы расположены с шагом 3,2 м. Железобетонные плиты толщиной 10 см и шириной 90 см монтируют по двум схемам. В начальный период строительства они опирались на внешнюю стену и удерживались в проектном положении двумя металлическими стержнями, которые, проходя через стык между внешними стенами, крепились к торцу внутренней стеновой панели.В более поздних проектах от такого решения отказались и, рассчитав балконную плиту как консоль, опирающуюся на внешнюю стену, соединили ее с плитой перекрытия с помощью сварных закладных элементов.
Пятиэтажные панельные дома серии 1-468
Типовые проекты жилых домов серии 1-468 изначально разрабатывались в институте Гостройпроект, а с 1961 года — в ЦНИИ ЖКХ.
Несущий каркас домов данной серии — расположенные в плане поперечные несущие стены с шагом 3 и 6 м, за счет чего, в отличие от домов серии 1-464, дома данной конструктивной системы называются дома со «смешанным» шагом поперечных несущих стен.
Самый распространенный представитель домов этой серии — пятиэтажный четырехсекционный жилой дом. В нем наружные стеновые панели выполнены из автоклавного ячеистого бетона или легкого бетона, а многопустотные железобетонные перекрытия поддерживаются поперечными несущими железобетонными стенами. Продольные стены здания самонесущие. Крыши таких домов возводились в двух вариантах: совмещенный с рулонным покрытием и чердачный стропильный с крышей из гофрированных асбестоцементных листов.
Главное преимущество домов этой серии в том, что панели перекрытия не упираются в продольные стены здания. Поэтому эти стены, помимо отдельных участков внутренней стены, прилегающих к лестничным клеткам и обеспечивающих продольную устойчивость здания, можно демонтировать в отдельных местах. Именно это обстоятельство при модернизации таких построек открывает широкие возможности для устранения конструктивных недостатков существующих квартир за счет добавления в здание дополнительных объемов.Устройство новых и расширение существующих проемов в несущих поперечных стенах возможно только при подтверждении расчета и усилении «контуров» проемов.
Пятиэтажные панельные дома серии 1-335
Пятиэтажные жилые дома серии модельных проектов 1-335 являются представителями каркасно-панельной конструкционной системы. Типовые проекты этой серии изначально разрабатывались авторами в Ленинградском конструкторском бюро, а затем были продолжены в институте ЛенЗНИИЭП.
Конструктивная схема дома представляет собой так называемый «неполный» каркас, который состоит из одного ряда железобетонных колонн, расположенных по средней продольной оси здания с шагом 3,2 и 2,6 м, и железобетонных ригелей, расположенных поперек строительство и опора с одной стороны на железобетонные колонны, а с другой — на металлические опорные столы, встроенные в корпус несущих наружных стеновых панелей. На перекладины укладываются железобетонные плиты перекрытия размером «на комнату», рассчитанные на опору по двум длинным сторонам.Колонны соединены между собой балками, обеспечивающими продольную жесткость здания.
В домах рассматриваемой системы несущие внешние стены в основном были ламинированы. Они имеют внешний слой в виде железобетонной оребренной «оболочки» и внутренний (утеплитель) из пенобетона толщиной 26 см, поверхность которого оштукатурена из помещения. В этих домах нет внутренних несущих стен, за исключением диафрагм жесткости, которые являются стенами пересечения лестничных клеток.
При одинаковых размерах и шагах домов разных серий в домах каркасно-панельной системы принцип «свободной планировки» может быть реализован полностью. Наличие ригелей под плиты перекрытия можно рассматривать как определенный недостаток, затрудняющий традиционное формирование интерьера жилых комнат.
Модификацией этой конструктивной системы стало введение в нее еще двух рядов колонн — у наружных стен здания для поддержки перекладин на них.Такие дома называют «домами с полным каркасом». В них внешние стены являются самонесущими и могут быть демонтированы при реконструкции.
Пятиэтажные кирпичные дома серии 1-447
Серия 1-447 включает типовые проекты 4-5-этажных жилых домов из кирпича с тремя продольными несущими стенами. Несущий каркас домов этой серии — три продольные несущие стены и поперечные кирпичные стены — наружная торцевая и внутренняя, между которыми расположены лестничные клетки.Поперечные кирпичные стены действуют как диафрагмы жесткости. Все остальные стены (внутриквартирные и межквартирные) ненесущие.
Перекрытия выполнены в виде многопустотных железобетонных плит, опирающихся короткими сторонами на продольные кирпичные стены. Наиболее нагружена средняя стена, на которую панели пола опираются с двух сторон. В наружных продольных стенах проемы можно увеличить только за счет устранения подоконника при сохранении существующих стен. Перемычки над окнами также должны быть сохранены.В торцевых стенах здания при реконструкции возможно устройство проемов.
Возможен демонтаж перегородок серии 1-447
Сегодня, в условиях глобального градостроительства, представлен довольно большой выбор разного рода жилья с самыми разнообразными типами планировок.
Здесь можно найти и большие квартиры с просторными лоджиями, и апартаменты с двумя отдельными ванными комнатами, и даже жилье премиум-класса, которое представлено двухэтажными экземплярами.
Благодаря такому широкому выбору каждый может выбрать подходящий тип жилья.
Самым популярным видом благоустройства дома остается планировка 3-х комнатной квартиры, рассчитанная на большие семьи.
Лучшие квартиры представлены «трешками» свободной планировки. Это самые удобные и стильные жилые кв.
Если все пространство спланировано правильно, то на 130 м² смогут комфортно проживать люди разных поколений с совершенно разными вкусами и характером.Это улучшенная планировка 3-х комнатных квартир.
Планировка 3-х комнатной квартиры в новостройках
Как правило, сегодня в новых домах ванная располагается рядом с небольшой комнатой. Именно поэтому из этого небольшого помещения желательно сделать спальню.
Главное — определиться, какой элемент в спальне будет акцентирован. Это может быть как шкаф, так и спальное место.
Однако, если шкаф можно разместить в гостиной, то кровать обязательно станет центром комнаты.
Все жилье в новостройках имеет достаточно большую площадь, поэтому планировка 3-х комнатной квартиры при достаточно больших габаритах — это, прежде всего, свободное расположение помещений.
В спальнях больших квартир можно разместить не только необходимую кровать и систему хранения вещей, но и множество других предметов функциональной мебели. Здесь вы можете создать и воплотить в жизнь все дизайнерские идеи.
Тем, кому не нравится все стандартное и привычное, стоит обратить внимание на обустройство спальни с круглой кроватью.
Эта кровать выглядит очень стильно и модно. Необычный интерьер можно дополнить необычной подсветкой или овальной конструкцией из гипсокартона на потолке.
Разработка дизайн-проекта 3-х комнатной квартиры начинается с пожеланий собственников. Планировка 3-х комнатной квартиры и ее отделка выполнена в светлых тонах с некоторыми цветовыми акцентами.
В таком интерьере царит очень спокойная и уютная атмосфера.Детские комнаты должны быть оборудованы с учетом возрастных требований каждого ребенка.
Преимущества современной планировки квартир
Самой распространенной планировкой 3-комнатной квартиры в панельном доме был тип проходного помещения.
Здесь самая большая комната находится возле кладовой, через которую можно попасть в спальню.
Чтобы расширить пространство, многие снесли кладовую и построили совершенно новую перегородку.Получилось 2 комнаты и большой темный коридор.
Современные «три рубля» стали намного удобнее и комфортнее, ведь в них уже появились отдельные санузлы и жилые комнаты, увеличилась площадь кухонного пространства и санузла. Практически в каждой квартире теперь есть балкон или лоджия.
Обычная 3-х комнатная хрущевка, планировка которой также проста в реализации, что делает квартиры комфортными для проживания.Желательно зонировать пространство, используя цвет и фактуру материалов.
Сегодня планировка квартир в новых домах стала удобной. Привычные потолки 2,5 метра выросли, теперь их высота составляет 3 метра.
Также можно найти копии с индивидуальной планировкой или квартиры-студии, не имеющие внутренних стен, что дает возможность создавать неповторимые индивидуальные интерьеры.
Если не удалось подобрать подходящее жилье, можно сделать перепланировку самостоятельно, следуя простым методам и принципам.
Первое, на что обращают внимание, — это функциональное назначение помещения. Так из привычной спальни можно сделать спальню-гостиную или рабочую зону. Затем с помощью приемов зонирования комнату делят на секции и обозначают их.
Любой готовый корпус не всегда в конечном результате подходит для жилья.
Таким образом, благодаря фото планировке 3-х комнатной квартиры и советам профессиональных дизайнеров любой желающий может создать дом своей мечты.
Фото лучших идей планировки трехкомнатной квартиры
000
0003
0003
В липецких квартирах Сталинская планировка Бывают двух типов:
- Типовые квартиры Сталинская планировка .1,2,3,4 комнатные квартиры в 3-5 этажных домах (ул. Парковая, ул. Советская). Обычно если Сталин 5-этажный, то первый этаж изначально проектировался с высокими потолками (до 3,77 м.) Под нежилое помещение. Архитектура этих домов утилитарна: нет архетипических «излишеств», наружных стен — оштукатуренного силикатного кирпича, почти плоских фасадов со стандартной лепной отделкой. Часто над последним этажом располагается технический этаж или чердак. Плиты перекрытия железобетонные.
- Ранние квартиры Сталинская планировка . 1,2,3,4 — комнатные квартиры. Обычно 2 этажа (ул. Прокатная, район НЛМК) — для них характерно низкое качество строительства, деревянные лестницы между этажами, перекрытия между этажами выполнены из «черепицы» или дерева.
Характеристика всех домов Сталинской планировки есть:
- высокие потолки от 3 до 3,77 метров
- изолированные комнаты
- большая площадь кухни (от 7.От 5 до 16 метров) и комнат (до 30 метров)
- высокие, прямоугольные окна.
- во всех квартирах Сталинской планировки , кроме первой (опытной) с / отдельной
- надежная и прочная конструкция здания
Недостаток:
- отсутствие желоба
- Отсутствие лифта
Общая площадь:
1 ком. — 32-50 кв.м.
2 комн. — 44-65 кв.м.
3 комн. — 59-80 кв.м.
4 комн. — 80-100 кв.м.
Общие фото домов Сталинская планировка :
Планировки:
1 ком.
2 ком.
3-комнатная
4 ком.
Дома планировки 91 серии относятся к категории домов «улучшенной планировки». Такие дома есть во всех районах нашего города. За весь период строительства этих домов не было существенных различий ни в планировке квартир, ни в архитектуре домов. Внешняя особенность домов 91-й серии — 5-й угол в одной из комнат.Когда в описании квартиры указано, что холл «под углом» — скорее всего это 91-я серия .
Особенности панельных домов данного типа:
- наличие 5-го угла в одной из комнат в 3-х и 4-х комнатной квартире
- расположены в 9-10 этажных панельных домах
- Лифт и желоб между этажами
Ориентировочная площадь квартир 91-й серии:
1 комн. — 36/18/8 кв.м.
2 комн. — 51/30 / 7,5 кв.м.
3 комн. — 63/38/8 кв.м.
4 комн. — 78/55/8 кв.м.
Макеты, которые есть в Липецке:
1 ком.
2 ком.
3-комнатная
4 ком.
4 комнатная (на стыке 2-х домов)
Дома Ленинградского макета (или Ленпроект) построены в 70-80-х годах ХХ века. Начало строительства домов этого типа ознаменовало переход на более комфортный и современный уровень жилья.Материал, производимый в домашних условиях, — это панно или блок. Такие дома имеют форму «кораблей» — длинных многоквартирных домов. Девятиэтажные дома ленинградской планировки очень легко спутать с 91 серией, единственное внешнее отличие — наличие лоджии спереди дома (видно на 1 и 3 фото). Как правило, особенность домов с квартирами ленинградской планировки заключается в том, что окна (кроме угловых) выходят в одну сторону. То есть все комнаты расположены одной стороной вдоль длинного широкого коридора.Несущие межквартирные стены, что обеспечивает отличную звукоизоляцию. Межкомнатные перегородки не несущие, но в связи с особенностями планировки позволю вам перепланировать квартиру на свой вкус. Большой плюс ленинградской квартирной планировки — большая (по сравнению с большинством улучшенных квартир) с / у. В народе эта планировка называется « ленпроект » или « ленинград ». В Липецке примером ленпроект может служить дом № 7 и 8 по ул.9 мкр.
- 1 ком. — 32-36 кв.м.
- 2 комн. — 45-49 кв.м.
- 3 комн. — 60-68 кв.м.
- 4 комн. — 78-85 кв.м.
Характеристики домов ленинградской планировки (Ленпроект):
- Площадь кухни от 8 до 10 метров. №
- все квартиры (кроме угловых) имеют односторонние окна.
- Балкон длиной 4-4,5 метра.
- отдельный
- высота потолка 2,7 метра.
- есть лифт и желоб.
- обычно расположены в центральных районах города
Общие фотографии многоквартирных домов ленинградская планировка :
Планировки:
1 ком.
2 ком.
3-комнатная
Основным девелопером домов 90 серии в Липецке является Домостроительный завод (ДСК). Такие дома есть во всех районах нашего города. За весь период строительства этих домов не было существенных различий ни в планировке квартир, ни в архитектуре домов.Дома 90-й серии практически не встречаются в старых районах города и центра. Основная часть этих домов построена в новых районах города Липецка.
Особенности домов с планировкой квартир 90-й серии:
- расположены в 9-10 этажных домах,
- площадь кухни от 8,5 до 9 кв. метры
- Есть лифт и желоб на этаже
Общая площадь:
1 комнатная — 35-37 кв.м.
2 комн. — 50-52 кв.м.
3 комн. — 62-63 кв.м.
4 комн. — 79-82 кв.м.
Общие фото домов данного типа:
Планы квартир в домах серии 90:
1 ком.
2 ком.
3-комнатная
4 ком.
В начале 70-х на смену пятиэтажкам «сталинки» и «хрущевки» пришли 9-этажные дома серий 1-602, 1-606, 1-447С-47 (последний широко представлен в Липецке). , такие дома получили название брежневка, .Есть кирпич, панель, блок. В них появились лифты и мусоропроводы, улучшена звукоизоляция по сравнению с хрущевками. По своей сути брежневка — это усовершенствованная хрущевка или Подмосковье. Большим плюсом брежневки является то, что межквартирные стены в этих домах ненесущие, лифт находится на этаже, а между этажами — мусоропровод. Практически все брежневки расположены в прибыльных районах города с развитой инфраструктурой.
В начале 90-х прекратилось строительство ломовых домов брежневского типа, на смену им пришли дома улучшенной планировки.
Характеристики и особенности дома 1-447С-47
Тип дома — кирпичный
Этажей — 9
Высота помещения 2,64 см.
Несущие стены толщиной 380 мм.
Наружные стены кирпич силикатный и / или глиняный обыкновенный. 510 (640) мм
Внешняя верста — это обычно чистовой кирпич.
Панель перекрытия пустотная, предварительно напряженная 220 мм.
Дома брежненской планировки оборудованы всеми видами коммуникаций,
Крыша плоская, водоотвод внутренний.
Элеватор, мусоропровод.
Квартиры — 1,2,3,4 комнаты
Годы постройки — 1960-1980-е гг.
Общую площадь квартир данного типа сложно систематизировать из-за большого количества серий этих домов.
1 комн. — 32 — 33.9 кв.м.
2 комн. — 43,7 — 44,3 кв.м.
3 комн. — 57-61 кв.м.
Общие фото домов брежневского типа:
Приватный участок планировки квартир
Развитие массового жилищного строительства в Москве, Россия
Чтобы лучше понять социально-пространственное расслоение Москвы, необходимо рассмотреть долгосрочные пространственные модели престижности жилья, которые сформировались в XIX веке и до сих пор проявляются в городской пейзаж.В Москве существует два основных градиента престижности жилья: центрально-периферийный и отраслевой (или западно-восточный) (Попов, 2014). Сегодня престиж жилья проявляется в символическом достоинстве центра города, где расположены исторические и культурные учреждения. Секторальная дифференциация почти так же выражена, как и центрально-периферийная; за пределами центра города он становится главным определяющим фактором. Далее мы используем термин «вектор престижа» для обозначения наиболее престижных районов, расположенных вдоль основных радиальных магистралей.Таких векторов три: северо-западный, юго-западный и западный.
Национализация жилья в Советском Союзе и последующее централизованное распределение привели к глубокому социальному и жилому переплетению, когда люди разного культурного, социального и финансового уровня стали жить в одних и тех же многоквартирных домах или кварталах. Тем не менее, даже новая смешанная реальность не была единообразной по всему городу. Социальный состав жилых массивов во многом определялся учреждением, получившим имущество для своих сотрудников.Представители рабочего класса проживали в основном в восточной, юго-восточной и южной частях города в хрущевках и брежневках. Элита проживала в центре города и на территориях вдоль векторов престижа, где строились уникальные элитные жилые дома и жилые комплексы, образуя так называемые «золотые гетто». Социальное расслоение существовало, но основывалось на занятиях, а не доходах (Vendina 1997). В постсоветский период появление свободного рынка жилья, новые коммерческие застройки, реорганизация промышленных предприятий и, наконец, рост иммиграции и внутригородской мобильности населения были факторами, определившими эволюцию социально-пространственного стратификация в Москве (Попов 2007).Как было отмечено во введении, серьезной проблемой для нашего исследования является отсутствие официальных данных об основных характеристиках популяции. Поэтому мы используем прокси, основанные на имеющихся данных, для широкого описания текущих моделей социально-пространственного расслоения Москвы на уровне городских округов.
Стратификация по собственности изучается с использованием данных о собственности на жилье, так как договор об аренде в значительной степени не документирован. Кроме того, до 85% жителей Москвы являются собственниками своей недвижимости (Попов 2007).Эволюция имущественного расслоения приближенно описывается операциями как на первичном, так и на вторичном рынке жилья. На уровне городских округов средние цены на жилье четко демонстрируют юго-западный и северо-западный векторы престижа. Интересно, что новая элита 2000-х годов выбирала те же места, которые считались престижными в эпоху плановой экономики. Эти районы обладают рядом объективных преимуществ, таких как транспортная инфраструктура, удобства и эстетическая среда обитания, т.е.е. близость к пойме Москвы-реки. Стратификация собственности, полученная на основе данных о сделках с жильем, показывает гораздо меньшую стратификацию в восточных районах по сравнению с западными районами. Таким образом, этот основной пространственный образец указывает на то, что даже если имеет место джентрификация (широко понимаемая как «модернизация» депрессивных районов) в периферийных и полупериферийных районах, ее темпы медленные.
Число автомобилей на 1000 человек в 2010 году было самым высоким среди новостроек высокого уровня.Таким образом, уровень автомобилизации наиболее полезен для определения новых престижных жилых районов.
Образовательная стратификация . Отсутствие возможности беспрепятственно менять место жительства в советское время создавало тенденцию расселения вблизи мест работы, что формировало четкие границы между зонами с населением разного уровня образования. Современный пространственный образец образовательной стратификации во многом наследует образцы советской эпохи.Более высокий уровень образования был характерен не только для населения центра города, но и районов, расположенных на юго-западном и северо-западном векторах престижа, где находилась научная элита МГУ и институтов Академии наук. СССР получил жилье. В полосе микрорайонов по северо-западному вектору престижа проживали научные кадры авиационной и космической промышленности, а также представители творческой интеллигенции.Наименее образованное население проживало на промышленном востоке и юге, а также на северной периферии. Появление рынка жилья привело к некоторому нарушению пространственного распределения высокообразованных людей. Сферы интенсивного коммерческого жилищного строительства в последние десятилетия, как правило, привлекали новых жителей с более высоким уровнем образования, так как покупатели — это в основном люди среднего класса (Попов, личное сообщение, 2017; Куричева, личное сообщение, 2017).
Чтобы разграничить области старого и нового престижа, мы используем данные о пространственном распределении научных сотрудников.С советских времен популярность микрорайона среди научной элиты была тесно связана с общим престижем района. Даже сегодня только районы, расположенные вдоль юго-западного и северо-западного векторов престижа, имеют относительно высокую долю жителей с учеными степенями. Одна из причин, по которой ученые степени дают такое четкое различие, заключается в том, что, хотя получение высшего образования в целом стало более распространенным, получение ученой степени по-прежнему является почти исключительно задачей людей из более высоких социальных слоев.
Электоральная структура расслоения. Электоральная география Москвы хорошо освещена исследованиями (Колосов, Бородулина, 2004; Жидкин, 2002). Мы сосредоточимся только на наиболее очевидных закономерностях в голосовании населения Москвы, поскольку электоральные предпочтения населения указывают на динамику социальных движений внутри города. Для целей интерпретации мы разделяем политический спектр на четыре широких типа (коммунистический, демократический, проправительственный, остальные) и проводим анализ за два периода: 1996–2005 и 2011–2013 годы.Существует явная отрицательная корреляция (-0,96) между поддержкой демократов и проправительственной политикой. Поддержка демократов выше в сферах быстрого замещения общества, где поселяются более молодые и более образованные люди. Поддержка коммунистов сосредоточена в старых престижных местах, где проживает академическая элита и бывший номенклатур a. Однако области голосования за демократов и коммунистов пересекаются; главное различие между ними заключается в скорости социального обновления.
Учитывая достаточно стабильные электоральные предпочтения основных социальных групп, динамику результатов голосования можно использовать для оценки изменений социальной структуры округов. Центральные районы, где идет процесс джентрификации, известны своей поддержкой демократов, а лидером демократического голосования является новый район среднего класса Куркино. Территории с массовым жилищным строительством в первой волне постсоветского развития, а также реновированные районы демонстрируют тенденции к демократизации.
Выводы. Различные типы социальной стратификации демонстрируют очень похожие пространственные закономерности, что дает возможность использовать составной индекс для их сопоставления (рис. 13.7). Составной показатель представляет собой среднее значение пяти нормированных показателей: средняя цена купленной в районе квартиры, количество автомобилей на 1000 человек, количество жителей с высшим образованием на 1000 человек, количество жителей с ученой степенью на 1000 человек, доля голосов за демократов. 13,7Состав социально-пространственного расслоения Москвы; более высокие значения указывают на более высокий средний социальный статус жителей.Рисунок подготовил: Андрей Медведев.
Источник БТИ 2017; Департамент территориальных органов исполнительной власти 2012; Росреестр 2014; Росстат 2010; ЦиК 2014
Одни трансформации социальных структур происходят единообразно, другие способствуют поляризации социального городского пейзажа. Ключевую роль в процессе стратификации играет перераспределение и замещение населения посредством внутригородской мобильности и миграции. В таком привлекательном для мигрантов городе, как Москва, логично предположить, что характеристики мигрантов определяют динамику социальной структуры микрорайонов.Вклад миграции в формирование социальной структуры на уровне городских округов подробно исследовался ранее (Кашницкий, Гунько, 2016) на основе миграционных данных за 2012 год, и с тех пор обновление этих данных не публиковалось. В целом уровень этнической и социальной сегрегации мигрантов в Москве довольно низкий (Деминцева, 2017; Кашницкий, Гунько, 2016). Мигранты могут селиться практически в любых районах города благодаря богатой вариативности их жилищных стратегий (Деминцева, 2017).
Скорость обновления социальной структуры в текущем исследовании приближена к активности на рынке недвижимости. Мы оценивали активность первичного рынка по объему и качественным характеристикам вновь построенного жилого фонда, а вторичного рынка жилья — по количеству зарегистрированных сделок купли-продажи жилья. Коэффициент социального обновления — это среднее арифметическое нормированного коэффициента обновления жилищного фонда и сделок с жильем.Мы интерпретируем этот сводный индекс как скорость физического изменения состава населения.
Мы наблюдаем более высокие уровни сводного индекса в следующих группах районов (рис. 13.8). Во-первых, это центральные районы, где доля нового жилого фонда довольно умеренная, а качество старых многоквартирных домов зачастую высокое. Обычно в этих районах наблюдается наибольшая активность на вторичном рынке недвижимости, что свидетельствует о продолжающейся джентрификации. Во-вторых, районы по векторам престижа с основным жилищным фондом сталинки, дополненные постсоветскими индивидуальными элитными многоквартирными домами и микрорайонами.В-третьих, значительно отремонтированные районы. Здесь можно выделить два подтипа: реорганизованные промышленные зоны и районы по векторам престижа, где была реализована первая программа сноса хрущевок. В-четвертых, периферийные направления, разработанные в 1990-х — начале 2000-х гг. Рис. 13,8Пространственные закономерности коэффициента социального обновления. Рисунок подготовил: Андрей Медведев.
Источник БТИ 2017; Росреестр 2014
Напротив, низкие темпы социального обновления характерны почти для всей периферии непрестижных секторов, застроенных в позднесоветский период крупными панельными жилыми массивами, особенно в южных и юго-восточных районах.
В целом к началу 2010-х годов социальная структура города была самовоспроизводящейся, сохраняя большую часть советских моделей социально-пространственного расслоения. Интересно, что новое строительство дешевого массового жилья не приводит к ухудшению социальной структуры, а, наоборот, улучшает ее. Причина — общая завышенная стоимость жилья в Москве. В результате покупателями коммерческих новостроек даже в самом недорогом сегменте становятся молодые, граждански активные, образованные люди с относительно высоким и стабильным доходом (Попов, личное общение, 2017).Кроме того, в новом жилье теперь предусмотрены помещения на первом этаже для магазинов, кафе и других услуг, которые пользуются большим спросом у местного бизнеса, что, в свою очередь, положительно влияет на качество жизни в таких районах. Таким образом, вновь застроенные районы, даже застроенные относительно малобюджетными жилыми массивами, во многих отношениях являются центрами позитивных изменений на периферии.
K7 Городское жилье | Опыт России
На прошлой неделе мы представили советско-российский феномен коммуналки, коммунального жилья для разрозненных жизней, объединенных вместе в стремлении справедливо распределить жилую площадь.Все товарищи вместе! Что ж, это было намерением — пожертвовать личным пространством для предполагаемого прогресса общества в целом.
Перемещение остатков
Во времена революции Россия была в основном сельской страной, 80% населения которой проживало в провинциальных городах и деревнях. С государственной инициативой по ускорению индустриализации, которая включала как поощрение, так и принуждение, начался приток новых рабочих рук в городскую рабочую силу, как и неизбежная проблема перенаселенности.
Для некоторых это был обмен, когда государство предоставило место в большом городе в обмен на тяжелый труд. Как еще бывшему крестьянству удалось закрепиться в таком престижном месте, как Москва или Санкт-Петербург? Однако не все были предназначены для такого яркого света, как могут подтвердить бывшие жители советских промышленных городов с их убийственным воздухом (и водой).
Общий ящик в центре перемен в обмен на гарантированную черную работу и возможность большего.Перспектива могла победить безымянное существование на краю света, и действующие большевики сделали это возможным.
К 1950-м годам полюса по-настоящему изменились, и в результате городской жизни лишь 20% россиян в сельской местности были брошены в прошлое, в то время как серые сердца из советского бетона превратились в будущее, формирующееся где-то еще.
Смерть и наследство
Из-за смерти Сталина в 1953 году его работа осталась незавершенной, а Никита Хрущев столкнулся с жилищной проблемой.Преследуя предложение 1930-х годов обставить каждую семью собственным домом, он начал масштабный проект строительства из желейных блоков, которые были предварительно изготовлены в виде панелей и отправлены для сборки и штамповки в 3D в городские пейзажи через республика.
Прототипы появились в Москве 1930-х годов, но продвижение их Хрущевым навечно увязало его имя с этими вездесущими бетонными плитами. Как правило, каждый блок состоял из нескольких жилых единиц, уложенных в 5 этажей из бетона и внутренне разделенных на несколько подгрупп уложенных друг на друга квартир.Каждую группу обслуживала единственная внешняя дверь, за которой находилась центральная лестничная клетка с необработанными краями и клаустрофобный лифт (не всегда). Из этих мрачных сердец пустынные рукава неприветливых коридоров уходили в лужу за ее пределами. Формы даже деревьев, но вылепленные в пустом пространстве как противоположность когда-то прожитым жизням.
Разделенные пространства
Обозначенные как блоки в стиле «К-7», местные жители впоследствии окрестили их Хрущевками (множественное число), или Хрущоби — сленговый гибрид, рифмующийся с Трущеби или «трущобами»!
Интерьеры были утилитарными и скромными по размеру, хотя образец разделенного пространства мог варьироваться (это вариации положения кровати по нашим сравнительно экстравагантным стандартам).Помимо основной совместной гостиной и спальни, была небольшая ванная комната и компактная кухня / столовая с дополнительной роскошью кладовой, хотя это может не дать дополнительной площади; просто более тонкое разделение общей доступной площади. В любом случае это обычно воспринималось как еще одна спальня, несмотря на то, что по сути это была гардеробная без окон.
Комнаты обычно отделены от небольшого зала, что позволяет разделить их; хотя в более поздних проектах может потребоваться доступ в спальню через основную жилую зону.Серия K-7 могла похвастаться вариантами 30㎡, 44㎡ и 60㎡, как 1, 2 и 3-комнатные квартиры соответственно, плюс ванная комната (если вам интересно), хотя более поздние версии уменьшили размер этих и без того скромных помещений.
Нереальные ожидания
Для одного человека формат K-7 может показаться адекватным, уютным, даже «неплохим» для краткосрочной и среднесрочной перспективы, по крайней мере, в том виде жилья, в котором мы, возможно, жили в колледже или университете. Примечательно то, что 3 поколения россиян часто можно было найти живущими в двухкомнатной квартире в качестве временной остановки, в то время как за пределами советской мечты они приступили к изготовлению всего и для всех.
Некоторые блоки К-7 были спроектированы только на 25 лет, когда должна была завершиться утопия. Конечно, это была мечта и обещание. На самом деле Леонид Брежнев видел спад в экономике и все еще обещал дополнительные жилые площади в 1970-е годы; комната на каждого жителя плюс одна дополнительная — если только еще немного гнался за мечтой.
Он также оставил свое имя навсегда включенным в его собственную программу строительства более крупного, но менее распространенного жилья в Брежневке. Сегодня, несмотря на некоторые сносы и современную реконструкцию, K-7 все еще изобилует, некоторые «постоянные», другие залатаны и постепенно доживают до 60 лет; более чем вдвое больше предполагаемой продолжительности жизни, и это количество продолжает расти.
Окончательный упадок хрущевки, несомненно, начался с модернизации, которую возглавил мэр Москвы Сергей Собянин. The Guardian сообщает:
«В рамках самого масштабного проекта по переселению россиян за полвека, целых 10% жилья в Москве должны быть снесены, и 1,6 миллиона человек будут переселены из-за разрушения городских« хрущевок »».
На данный момент такая модернизация ограничена финансовыми районами, вскоре (возможно, в течение двух десятилетий) остальным придется присоединиться к инициативе, поскольку эти живые советские реликвии следуют за системой, которая их породила, и рассыпаются в прах.
Предыдущий пост | Следующая запись
Фото Дмитрия Фаблова
Какой должна быть высота потолков в доме? Какой должна быть комфортная высота потолков и какое это значение на практике.
Планируя строительство или покупку частного дома, необходимо обратить внимание на такой показатель, как высота потолка. От этого зависит комфорт людей в помещениях людей. Существуют определенные нормы и правила, регулирующие минимальное и оптимальное значение этого параметра для разных помещений.
Поэтому высота потолков в частном доме заслуживает особого внимания. Желая создать в помещении различные декоративные эффекты, установите натяжку или обязательно учитывайте этот параметр.
Соблюдение пропорций
Определиться, какая высота потолков в частном доме необходима, необходимо еще при проектировании будущей конструкции. Современные стандарты при этом учитывают все параметры внутри конструкции. Также следует учитывать назначение комнаты.
Для бани, например, не подходят очень высокие потолки. Но для жилых помещений необходимо подбирать такое значение этого параметра, чтобы людям было комфортно внутри.
Причем у хозяев должно быть достаточно места как при обустройстве интерьера, так и при обслуживании помещения. Ведь в средних или маленьких помещениях уборку и ремонт легче производить, чем в огромных залах.
Норматив
Современное строительство применяет различные стандарты в процессе проектирования внутреннего пространства здания.В частном доме 2,7 м. Этого достаточно, чтобы полностью провести уборку и ремонт помещения.
Минимальное расстояние от пола до потолка должно быть не менее 2,5 м. Такие значения показателя чаще используют в загородных домах, где хозяева временные. Для дачи, коттеджа, где при обустройстве интерьера недостаточно различных сложных дизайнерских приемов, этого также будет достаточно. Если потолок планируется просто покрасить, для дачи высота 2.5 более чем удобно.
Нормы требований
Высота потолка в частном доме, помимо прочего, также регулируется СНиП и принципами организации пожарной безопасности. Согласно их требованиям, в доме, где постоянно живут люди, при проектировании следует придерживаться определенных параметров. В этом случае минимальная высота должна быть не менее 2,6 м.
Общепринятым мнением является необходимость компоновки с достаточно просторными габаритами.Чем выше потолки, тем уютнее комната. Поэтому многим владельцам частных домов еще только в процессе проектирования жилища кажется правильным решение сделать высоту потолков внутри комнат около 3 м.
Такой подход позволяет создать оригинальный дизайн. Но и куб комнат тоже увеличивается, и при этом в холодный период придется тратить больше энергоресурсов на обогрев таких помещений. Если в помещениях с высокими потолками нет тепла, здесь будет очень неуютно.Такая комната кажется мрачной.
Параметры комнаты
Согласно рекомендациям специалистов, оптимальная высота потолков в частном доме должна быть от 2,6 до 3 м. Чтобы правильно выбрать необходимое значение показателя из этого спектра, необходимо обратиться к плану всей конструкции.
Частный дом может эксплуатироваться круглогодично или сезонно. Для небольшого дачного участка характерны небольшие помещения. Редко для таких домов бывает огромный холл, гостиная и т. Д.У него несколько средних или маленьких спален, кухня, ванная и общий холл. Поэтому в таких маленьких комнатах высокий потолок будет смотреться неестественно. Итак, идеальным решением будет выбор этого параметра на 2,6 м.
В доме, в котором семья живет круглый год, может быть несколько очень просторных комнат. А в них низкий потолок, в свою очередь, покажется нелепым. Поэтому в таких условиях его уровень максимально повышается.
Как зрительно увеличить уровень потолка?
Большая высота потолков в частном доме доступна далеко не каждому хозяину.Желая визуально раздвинуть пространство, можно воспользоваться несколькими советами специалистов. Подскажут, как правильно обустроить интерьер в маленькой комнате:
- Если потолок светлый, он зрительно расширит пространство.
- Аналогичный эффект дает окраска потолка в тон стенам или только их верхней части.
- Вертикальные линии в интерьере зрительно увеличивают пространство. Для этого используйте обои с соответствующим рисунком.
- Зеркальный блеск натяжного потолка тоже притягивает пространство.Это довольно интересный прием. Кстати, комната одновременно выглядит элегантно и торжественно.
Натяжной потолок
Высота потолков в частном доме может существенно уменьшиться, если хозяева решат сделать натяжку или чтобы пространство комнаты не уменьшилось хотя бы визуально, следует учесть несколько рекомендаций.
Простые конструкции с единственной люстрой в центре уменьшают высоту на несколько сантиметров.Для окружающих это практически не заметно. Но если предполагает установку сложной системы освещения, высота займет около 10 см. Под панелью придется разместить провода и специальный крепеж. Поэтому такие системы лучше оборудовать в просторных помещениях, где высота потолков равна не менее 2,8 м.
В современных условиях Многие хозяева монтируют под натяжным потолком различное противопожарное и охранное оборудование. Для него характерно уменьшение пространства на 15 см.Поэтому все предыдущие приемы визуального увеличения высоты потолков будут актуальны в таких условиях.
Рассмотрев стандарты и критерии выбора такого показателя, как высота потолков в частном доме, каждый собственник недвижимости сможет создать максимально комфортное жилое пространство. Воспользовавшись советами профессиональных дизайнеров, вы сможете зрительно расширить комнату, благодаря чему в ней будет комфортно и хозяевам, и их гостям.
При обустройстве собственного жилья актуальна проблема помещения.
Стандарты и нормы
Считается, что обычный уровень потолков в квартире 2,6-2,7 м. Этот показатель оптимален, так как не создает лишней пустоты и обеспечивает достаточно воздуха и света, а также позволяет устанавливать навесное оборудование. Тем не менее, существуют четко установленные нормы строительной документации:
.- Стандартная высота потолка 2.1 м под коридоры и хозяйственные помещения. В жилых помещениях и на кухне показатель увеличивается до 2,5 м.
- Значения влияют на климатическую зону. На отдельных участках минимум увеличен до 2,7 м.
- Если мы говорим об общественных зданиях, то минимально допустимая норма — 3 метра.
- При наличии мансардного помещения Уровень потолков от 1,3 м, но зона комфорта занимает не менее 50% площади.
В помещении должно быть достаточно свободного места для обеспечения условий для безопасного передвижения людей.
Понятно, что низкие потолки — неудобно, но при завышенных значениях куб помещения увеличивается, что влечет дополнительные расходы на освещение и отопление.
Сравнение Ceilkov
Рассмотрим нормативные показатели для жилых домов.
- Сталинки. Так называемый кирпичный дом 1930-1970 годов. Их отличает полнота, наличие элементов монументальной архитектуры и высокие потолки — около 3-4 метров.
- Хрущевка. Уровень перекрытия в таких квартирах минимальный — 2,5-2,6 м. К тому же оставляет желать лучшего качество укладки и отделки.
- Панельные дома. Высота потолков в таких постройках обычно составляет 2,7 м.
- Новостройки. В зависимости от проекта и застройщика значения варьируются в пределах 2,7-3 м.
Если рассматривать частные дома, то их чаще всего предусматривают высотой 2,8-2,9 м. Чем больше площадь, тем выше должны быть стены, чтобы не создавалось давление.При этом в маленьких комнатах нельзя чрезмерно подтягивать пространство вверх.
Эффект цвета
Исправить недочеты в планировке можно грамотной отделкой. Чаще всего меняют потолок в хрущевке. Небольшая высота, а также наличие неровностей и разной ширины «бордюров» создают определенные трудности в этом плане. Тем не менее даже в этих постройках можно создать красивый дизайн.
Для небольших площадей и невысоких комнат советуют остановиться на светлой палитре.Оптимальное решение — белый цвет.
Можно взять нежно-голубой, имитирующий чистое небо, бежевый, кремовый, светло-лимонный. Темные оттенки давят и поглощают свет. В просторных квартирах допускается сочетание любых цветов. Черный глянец способен зрительно увеличить комнату, создав ощущение бесконечности при грамотном расположении подсветки.
Не забывайте использовать изображения и фотографии. Перспектива способна создать необходимый эффект даже на небольших площадях.
Подвесные конструкции
Что касается способов отделки потолочного пространства, то это также зависит от высоты помещения и его площади.Большой популярностью пользуются подвесные помещения, обладающие рядом преимуществ:
- эстетическая привлекательность и декоративность;
- различных версий;
- возможность комбинирования материалов и цветов;
- Отсутствие необходимости в тщательной подготовке поверхности;
- дисковых дефекта;
- скрытых сообщений и сообщений;
- возможность установки встроенного и декоративного освещения.
Существует несколько видов таких конструкций:
- порыв;
- подвесных модульных конструкций;
- гипсокартон;
- растяжка;
- комбинированный.
Поскольку предполагается установка системы на каркас с отступом от верхней точки, подвесные конструкции актуальны для помещений, где есть запасы на 14-20 см. Стандартными индикаторами можно уложиться в допустимые нормы, но важно правильно подобрать цветовое оформление.
Если уровень недостаточен, лучше использовать другие методы.
В частности, в хрущевке можно вшить кайму коробки, но центральную часть оставить чистой или выполнить установку с минимальным отступом.
Отделка невысокого помещения
В большинстве старых домов приходится отказаться от установки навесного оборудования. Стоит рассмотреть такие варианты:
- Лепнина с росписью. Все швы заделывают и неровности заделывают, кладут финишную шпаклевку. Гладкая поверхность доводится до идеала, а после грунтовки наносится водоэмульсионная краска необходимого оттенка.
- Обои. Предварительно выровненная поверхность покрывается полосами с однородной текстурой или объемным рисунком.Лучше купите белые виниловые обои под покраску.
- Плитка. Он легкий и без проблем монтируется с помощью полимерного клея. Используется специальная потолочная плитка, чаще всего полиуретановая.
- Вихрь. В перекрытия монтируются листы гипсокартона, фанеры или OSB панели, что позволяет скрыть дефекты без потери высоты. В дальнейшем поверхность подметают и красят.
Предположительная проводка, шахматный потолок. В процессе отделки все швы скроются.
При покупке квартиры заранее уточняйте размеры, а также качество поверхностей, чтобы рассчитать силы и средства на ремонт.
При покупке и строительстве квартиры или частного дома новые хозяева обращают внимание на высоту потолков. От этого параметра зависит восприятие пространства в помещении и комфортное пребывание в нем. При создании интерьера высота потолков в квартире или доме выше средних позволяет хозяину создать навесной многоуровневый потолок или подвесить роскошную люстру.
Высота потолков в квартирах
Вне зависимости от того, когда был построен многоэтажный дом, стандартная высота потолков в квартире составляет от 2,5 до 3,2 метра. Минимальное расстояние от пола до перекрытия, которое, по мнению специалистов, не вызывает давления и дискомфорта — это 2,5 метра. В жилых домах, построенных по чешскому типичному проекту, высота составляет 2,6-2,7 метра и этот параметр является оптимальным.
В настоящее время средняя высота потолка в квартире в новостройках менее 2.5 метров и обычно составляет от 2,6 до 2,8 метра, что вполне достаточно для создания комфортной обстановки и ощущения комфорта. В новостройках, относящихся к сегменту элитного жилья, этот показатель достигает 3 метров. При покупке недвижимости нужно обращать внимание на качество перекрытия потолка, ведь если на нем есть неровности, их нужно будет устранить, а это сократит расстояние между полом и потолком помещения.
Стоимость квартиры с высокими потолками дороже такой же квадрата, но с наименьшим перекрытием и это может быть оправдано с экономической точки зрения.По этой причине специалисты уверены, что цена оптимальна как цена цены, так и со стороны комфорта высота равна примерно 2,7 метра и рекомендуют ориентироваться по этому показателю, приобретая недвижимость.
Высокие потолки в квартире, находящейся в новостройке, обязательно позволят реализовать оригинальные дизайнерские идеи при создании интерьера.
Действующие стандарты высоты потолков
Нормы высоты потолков в зданиях разного назначения не существует.Обычно для помещений существует нижняя граница этого параметра, ниже которой строительство не допускается.
На сегодняшний день высота потолков по СНиП составляет:
Дизайн квартиры с высокими потолками
Стандартная высота потолка в квартире не всегда позволяет хозяину оформить его в соответствии с собственными предпочтениями. Когда в доме высокие потолки, это всегда считается преимуществом, потому что в таких комнатах больше и света, и воздуха, и нет ощущения, что вы находитесь в замкнутом пространстве.
Помещения с высокими потолками — дизайн может быть разным, ведь они и маленькие по площади, и большие.
Дизайн квартиры с высокими потолками, не менее 3,7 метра позволяет воплотить самые смелые фантазии при создании интерьера. Например, под основным перекрытием можно расположить дополнительный этаж-чердак и разместить там спальное место. На втором ярусе поставить кровать или оборудовать библиотеку.
Чтобы избежать ощущения пустоты, дизайн квартир с высокими потолками позволяет сделать не полноценный этаж, а уютную зону для отдыха, вход в которую оформлен в виде лестницы с небольшими ступенями.
Интерьер квартиры с высокими потолками и большой площадью предполагает выбор в качестве массивной крупной мебели. Главное, визуально не перегружать убранство помещения, потому что в противном случае ощущение большого пространства и света исчезнет бесследно, испортится.
Как правило, дизайн комнаты с высокими потолками выполняется в стиле Лофт, который подчеркивает это преимущество и предполагает организацию скрытых мест для хранения вещей, эффективно организуя окружающее пространство.Некоторые владельцы таких квартир выбирают стиль Модерн.
В комнатах с высокими потолками достаточно места, где можно перемещаться, что есть фото на сайте. Например, можно сделать красивую фигурную форму арки или выложить оригинальные проемы в дверном проеме. Также применяются различные декоративные элементы. При желании можно создавать многоярусные конструкции натяжного или натяжного потолка, не занимая при этом значительной высоты помещения. Не возникнет проблем с тем, как установить уровень потолка в комнате с высокими потолками, несколько сантиметров никак не повлияют на общее восприятие пространства.См. Также: «
Высота комнаты — главная составляющая нашего комфорта. Именно поэтому при строительстве частного дома следует тщательно соблюдать пропорции. Высота потолка в частном доме должна отображаться строго в соответствии с длиной и шириной комнаты.
Количество и размер окон также должны быть пропорциональны их размеру, чтобы обеспечить равномерное распределение дневного света по всему объему. Например, в просторных высоких помещениях должно быть несколько больших окон, иначе в дальних частях будет нехватка света.В результате в комнате будет темно и холодно, к тому же естественная вентиляция такого помещения будет нарушена. Однако большая площадь оконных проемов тоже доставит дискомфорт. При строительстве дома следует ориентироваться, что общая ширина оконных проемов составляет 55% от длины стены, в которой эти проемы сделаны. Тем не менее, если вы ошибетесь с количеством и размером оконных проемов, в дальнейшем это не исправят. А вот низкие потолки поднять позже уже будет уже нельзя.Поэтому стену лучше соорудить немного выше — лишнюю высоту можно будет при необходимости убрать с помощью натяжных потолков.
Натяжные и натяжные потолки перестали быть предметом роскоши, став неотъемлемой частью интерьера современного жилища. Более того, новые строительные нормы, допускающие высоту потолка в пределах 3,2 м (а не 2,5 м, как было раньше), позволяют применять различные технологии как натяжного, так и подвесного «второго» потолка.Эта уникальная конструкция позволяет не только регулировать высоту помещения под его рост, но и сочетает в себе жаропрочные качества и стиль. В современные натяжные потолки можно установить осветительные приборы, (например,). Таким образом, натяжные потолки могут полностью заменить первичный потолок.
Но даже если вы не планируете дальше устанавливать вторичный потолок, то высокий потолок подарит ощущение простора и свободы. Тем не менее возводить слишком высокие стены не стоит, так как это затруднит их обслуживание. Самой оптимальной считается высота потолка в частном доме 2,7 м. Позволит вам легко убирать, блаженствовать и другие виды ремонта в верхней части комнаты. Чтобы каждый год не делать ремонт, новый потолок желательно обработать противогрибковыми средствами и продезинфицировать антибактериальным раствором. В помещении C. повышенная влажность Необходимо защитить потолок гидроизоляционными материалами.
Из вышесказанного можно сделать вывод, что высота жилого помещения должна быть в пределах 2.5 — 3,2 метра. Завышать или занижать эти значения не рекомендуется.
Вопрос о стандартной высоте потолков может возникнуть как на этапе проектирования дома, так и при покупке жилья. Кроме того, этот параметр нужно знать при ремонте или установке натяжных и подвесных потолочных конструкций — в этом случае важно соблюдать минимально допустимую высоту.
Нормативные документы, регулирующие высоту потолков
Высота потолков Б.многоквартирные дома Типовой дом регулирует п. 5.8 СНиП 31-01-2003.
Минимальное расстояние от пола до потолка в данном случае зависит от:
- климатический район, в котором находится сооружение;
- назначение и тип помещения.
Климатический район — параметр, указанный в СНиП 23-01-99, учитывает среднюю температуру воздуха в разные месяцы, а также влажность и направление ветра. Всего 4 климатических зоны разбиты на 16 подразделов.Чем ниже категория местности, тем в ней более суровый и холодный климат.
СНиП 23-01-99. Строительная климатология. Файл для скачивания.
Для Субарионов IA, IB, IG, ID и IVA по СНиП 23-01-99 минимально допустимая высота от пола до чистого потолка в жилом помещении должна быть не менее 2,7 метра. Для остальной части подзоны этот параметр составляет 2,5 метра. Указанные значения обеспечивают нормальный воздухообмен и микроклимат в помещениях.
В помещениях и кухнях, расположенных на мансардном этаже, допускается уменьшение указанной высоты на площади, не превышающей половину комнаты. В коридорах с просторами и в проходах возможно снижение потолка до 2,1 метра — такая высота обеспечивает нормальное безопасное передвижение людей.
Максимальная высота потолков обычно не регламентируется, но в современной застройке чаще всего не превышает 3,2 метра. В старых домах с увеличенными габаритами и площадью потолков может быть 4 метра и более.
При проектировании частного дома и выборе высоты потолка рекомендуется учитывать не только вышеперечисленные факторы, но и площадь помещения. В узком и маленьком помещении неуместны высокие потолки — они создают ощущение «колодца». Просторные комнаты и гостиные с большим объемом воздуха гармонично смотрятся при высоте потолка от 3 метров.
Стандартная высота потолков в различных домах
Типовые многоквартирные дома Как правило, имеют стандартную высоту потолков, которая зависит от типа здания и времени его возведения.Квартиры, расположенные в разных частях страны, практически не отличаются друг от друга, а высота потолков находится в пределах погрешности не более нескольких сантиметров. Учитывайте стандартное расстояние от пола до потолка в разных домах.
«Сталинки» и старый жилой фундамент
Дома старые постройки Отличаются большой площадью и размерами комнат, а также увеличенной высотой потолков. Они были построены в ту эпоху, когда перед ним еще не стояла задача обеспечить каждую семью для каждой семьи хоть и немного, но своей квартирой, поэтому строители не экономили на материалах и пространстве.
Высота потолков в таких домах чаще всего колеблется в пределах 3,3–3,6 метра. Потолки в «Сталинках» часто украшают лепниной и массивными декоративными карнизами. При установке натяжных потолков и гипсокартона из-за этой особенности необходимо на значительное расстояние снизить высоту потолка.
Перекрытие в старых домах часто выполнялось из дерева, а проводка проводилась наружно, поэтому ремонт таких потолков связан с большими затратами.Но в результате можно получить неповторимый интерьер с просторными светлыми комнатами и высокими потолками в любом стилевом решении. В старых домах отлично смотрятся многоуровневые потолки с богатым декором, встроенной подсветкой или массивными люстрами.
Примечание! Для отделки потолков в домах старой постройки с высокими потолками обычно используются подвесные или натяжные конструкции. Покраску и оклейку обоями здесь, как правило, не производят из-за сложности выравнивания старых перекрытий.
Апартаменты «Хрущевки»
Во времена Хрущева перед архитекторами и строителями была поставлена задача: в сжатые сроки и с минимальными затратами предоставить каждому по семь отдельных домов. Так появились «хрущевки» — квартиры малой площади с минимально допустимой высотой потолков.
Расстояние от пола до потолка в «хрущевке» составляет 2,5 метра, иногда встречаются квартиры высотой до 2,6 метра, они расположены на первых или последних этажах.В северных регионах высота больше — до 2,7 метра.
Перекрытия в этих домах из железобетонных панелей, поэтому отделка предельно проста: укладка бетона с зашивкой швов и побелкой или покраской. При установке натяжных потолков отводится высота минимум 5 см, что делает комнату еще ниже, однако этот способ в «хрущевках» применяется довольно часто.
А вот подвесные конструкции из гипсокартона или реек нужно использовать осторожно, так как их монтаж еще сильнее снижает потолок.Неуместны и многоуровневые системы со сложным рельефом — такие потолки будут мять и варить.
При желании можно использовать сочетание цветов и фактур потолка, таким образом можно добиться зонирования без значительного уменьшения высоты комнаты. Массивные люстры лучше заменить на встроенную подсветку.
Примечание! Для отделки потолков в хрущевке лучше использовать светлые тона и глянцевую фактуру, зрительно увеличивающую высоту.
Superior, или «Брежневка»
В более позднюю, брежневскую эпоху, люди стали уделять больше внимания личному пространству и комфорту, что наложило свой отпечаток на стандарты строительства. Квартиры стали просторнее, комнаты получили отдельный вход и прихожую, появились встроенные шкафы и антресоль. Изменилась высота потолков — она увеличилась до 2,6-2,7 метра.
В остальном «брежневцы» мало чем отличались от хрущевок.Кирпичные стены и железобетонные полы, максимально простая планировка и отсутствие декоративных элементов — вот черты, которые объединяют эти типы домов.
Ремонт потолков в «Брежневке» обычно не связан с особыми затратами, относительно гладкая поверхность допускает любые виды отделки. До минимально допустимой высоты потолка в среднем остается 15-20 см, что позволяет монтировать любые подвесные и натяжные конструкции: полотно, гипсокартон, рейки и панели.
Планировка панно «Брежневка» серии II-49.
II-49.
Примечание! В узких помещениях дизайнеры рекомендуют использовать приемы зонирования потолка с помощью уровней или разных цветов. Разместив линию разреза поперек комнаты, вы сможете визуально расширить ее.
Панельно-блочные дома
История строительства панельных домов уходит в хрущевские времена. Первые панельные дома были пятиэтажными, их планировалось возводить в теплых южных районах.Толщина стен в таких домах небольшая, а высота потолков не превышает 2,5 метра. Планировка в целом похожа на кирпичную «хрущевку», площадь квартир небольшая, а комнатам не хватает места и света.
Более современные панельные и блочные дома начали возводить в 80-х годах 20 века. Они могут похвастаться увеличенными этажами, увеличенной площадью комнат и кухонь, а также высотой потолков — 2,65-2,75 метра.
Отделка таких потолков не связана с особыми проблемами — перекрытия имеют ровную поверхность и редко нуждаются в серьезном ремонте.По вашему желанию их можно просто покрасить, предварительно загладив мелкие неровности и швы, либо смонтировать любые подвесные конструкции.
Потолки в панельных домах часто имеют достаточно гладкую поверхность, поэтому отделочные или другие работы не связаны с особыми проблемами
Примечание! Панельные дома имеют плохую звукоизоляцию, стены и потолки в них отлично переносят ударные шумы. При установке натяжных и натяжных потолков рекомендуется выполнять звукоизоляцию с использованием многослойных конструкций, состоящих из эластичных и волокнистых материалов.
Пластина звукопоглощающая из негорючего минерального волокна «Шуманет БМ»
Современные апартаменты
Современные постройки отличаются большим разнообразием планировок и применяемых технологий строительства. На рынке жилья представлены дома эконом-класса для широкого круга покупателей и элитное жилье. Они различаются площадью квартир и уровнем комфорта, на что влияет и высота потолка.
Таким образом, в малогабаритных квартирах и студиях в целях экономии материалов и удешевления строительства потолки выполняются по минимально допустимой норме (обычно 2.7 метров). Элитное жилье отличается количеством и площадью комнат, наличием панорамных окон, арок, ниши. Потолки в таких квартирах обычно имеют высоту 2,8-3,2 метра, величина зависит от исходного проекта. Это время можно уточнить в документации на строительство.
Обшивка потолка Б. Современные квартиры эконом класса практически не имеют ограничений, не рекомендуется устанавливать многоуровневые системы в небольших помещениях — кухне, ванной или маленькой спальне.Для визуального увеличения высоты комнаты можно использовать глянцевые и зеркальные текстуры материала и правильно подобранное освещение.
Ремонт элитного жилья обычно поручается профессионалам, начиная от заказа дизайн-проекта и заканчивая работами и последующей уборкой. Опытный дизайнер поможет подобрать оптимальную высоту потолка, которая подчеркнет достоинства квартиры и узаконит ее недостатки.
Примечание! Высота потолка в новостройках может сильно различаться даже для квартир, расположенных на разных этажах.Чтобы уточнить этот параметр, обратитесь к застройщику или посмотрите документацию на дом.
Дома частной застройки
Частный дом — это безграничный расширитель фантазии. Здесь возможна любая планировка и геометрические размеры помещений, в том числе высота потолков. Последний, как правило, выбирает сам заказчик вместе с архитектором.
Чтобы придать дом к дому и создать в нем уютный микроклимат, высоту потолков обычно выбирают в пределах 2.9-3,2 метра. Возможны более высокие потолки, но следует помнить, что увеличенное капустное помещение потребует больших затрат на отопление. Для домов, расположенных в южных регионах, это не слишком актуально. Для средней полосы А северных регионов следует провести предварительный теплотехнический расчет, чтобы определить целесообразность увеличения стандартной высоты потолка.
Отделка потолка в частном доме зависит от материала перекрытий. Для деревянных балок обычно используются натяжные потолки, подвесные конструкции или деревянная отделка, а также комбинированные виды отделки, оставляющие открытые балки внахлест.Железобетонные перекрытия допускают любую отделку, от окраски до сложных подвесных систем.
Примечание! С видом декоративной отделки потолка лучше определиться на этапе проектирования. Чтобы можно было правильно рассчитать высоту чистого потолка, что особенно важно при установке многоуровневых систем.
Как рассчитать оптимальную высоту потолка при проектировании и ремонте
Как видно из описания различных корпусов, стандартная высота потолка может быть разной, это можно уточнить и сравнить в таблице ниже.
Таблица 1. Стандартная высота солки в домах разного типа.
Помимо стандартной, существует еще такое понятие, как оптимальная высота потолка. В нем учтены не только требования СНиП к микроклимату и безопасности, но и эргономика помещения, сочетание габаритов по всем трем измерениям. Следует отметить, что оптимальная высота потолка не должна быть ниже регулируемой.
Таблица 2. Выбор оптимальной высоты потолков в разных помещениях.
| Условия, иллюстрация | Краткое описание |
|---|---|
Состояние 1. Микроклимат и воздухообмен | Для жилых комнат и кухни Оптимальная высота потолка в отделке должна быть не меньше роста самого высокого члена семьи плюс 1 метр. Это связано с тем, что в верхнем метровом слое воздуха в помещении максимум пыли, бактерий и вредных газов, образующихся при дыхании и работе отопительных приборов.Для хорошего самочувствия нужно исключить вдыхание воздуха из этого слоя воздуха. При среднем уровне 170 см потолок в отделке выполняется высотой 2,7 метра. |
Состояние 2. Отопление и затраты на него | Не стоит переоценивать высоту потолка — это значительно увеличивает стоимость отопления. Так, для дома 100 м2 увеличение расстояния от пола до потолка на 30 см грозит увеличением кабины здания на 30 м3, что потребует установки более мощного отопительного оборудования и удорожания. отопления. |
Состояние 3. Этаж и планировка | Для двух- и трехэтажного дома слишком высокие потолки тоже нежелательны, и не только из-за удорожания строительства. Лестница на верхние этажи с увеличенной высотой потолка займет большую площадь или будет иметь слишком крутой уклон, что неудобно, а иногда и небезопасно. Если вы хотите просторную гостиную или комнату в двухэтажном доме, используйте планировку со вторым светом, как показано на картинке.В таком доме высота потолка в гостиной или холле занимает оба этажа. |
Условие 4. Назначение помещения | Нет смысла делать высокие потолки в помещениях с временным проживанием: в кладовой, гараже, небольшом коридоре. Они довольно высокие в высоту 2,2-2,5 метра. Также не стоит делать высокие потолки в бане и сауне — так будет сложнее выпирать нужную температуру. Их достаточно 2,2-2,3 м. |
Условие 5.Площадь номера | Главное правило: чем просторнее комната, тем уместнее в ней высокие потолки. Так, для гостиной или столовой площадью 20 м2 подойдет высота потолков 3,0-3,5 метра; Для кухни, спальни и детской достаточно 2,7-3,2 метра; Для ванной — 2,7-3,0 метра. Добиться разной высоты в разных помещениях можно за счет подвесных или натяжных конструкций и отделки потолка. Под ними, кроме того, можно спрятать системы коммуникаций и вентиляции. |
Несмотря на то, что стандартная высота потолка регламентирована нормами, ее значение может сильно варьироваться. При покупке нового или вторичного жилья этот параметр необходимо уточнить в техпаспорте на квартиру или дом или измерить самостоятельно. В случае частной застройки лучше руководствоваться личными потребностями и предпочтениями, ведь правильно подобранное помещение — правильно, оно не только создаст желаемый стиль и интерьер в доме, но и обеспечит там комфортную обстановку.
