На какой высоте вешают вытяжку на кухне: Расстояние от газовой плиты до вытяжки по стандарту
На какой высоте вешать вытяжку? Вытяжка в ванную. Вытяжка на кухню
Каждый человек, заботящийся о создании комфортных условий проживания для себя и своих родных, понимает, насколько важна вытяжка в доме. Это правильно подобранное и установленное оборудование обеспечивает хорошую вентиляцию помещения, удаляя из него посторонние запахи и излишки влаги.
При выборе вентилятора, предназначенного для работы в помещениях с повышенным уровнем влажности, необходимо обращать внимание на такой параметр, как производительность. Он подбирается с учетом объема ванной комнаты и кратности обмена воздуха. Не менее важной характеристикой является уровень шума, производимого работающим прибором. Кроме того, вентилятор должен иметь защиту от возможного проникновения влаги. Выбирая прибор, рекомендуется поинтересоваться его функциональностью. Вытяжка в ванную может быть не только стандартной, но и автоматической. Второй вариант более современный, но и более дорогой. Он оснащен специальным таймером, позволяющим запрограммировать прибор, чтобы он включался через определенные промежутки времени.
Особенности монтажа вентилятора в ванной
То, насколько корректно будет работать прибор, во многом зависит от правильного выбора его месторасположения. Желательно монтировать его под самым потолком. Для того, чтобы физические процессы циркуляции воздушных масс способствовали правильному функционированию вентилятора, он должен устанавливаться напротив входа в помещение. Категорически запрещено монтировать прибор на одной стене с дверным проемом. Обычно монтаж вытяжки производится непосредственно в вентиляционный канал. Для этого в нем проделывается отверстие. Сделать это можно при помощи болгарки или молотка с зубилом. Чтобы “утопить” вентилятор в шахте и закрепить его там, рекомендуется воспользоваться специальными крепежами, дюбелями, саморезами и легкой обрешеткой. Для герметизации проема, образовавшегося между стеной и основанием вытяжного вентилятора, можно использовать герметик.
Кухонная вентиляция: непозволительная роскошь или оправданная необходимость?
Еще несколько десятилетий назад кухонные вытяжки считались прерогативой предприятий общественного питания.
Их устанавливали в столовых, ресторанах и кафе. Однако сегодня ситуация кардинально изменилась и этот прибор можно увидеть практически в каждом доме. Он с легкостью устраняет неприятные запахи, испарения и дым, образующийся во время приготовления пищи. Поэтому все большее количество людей интересуется, на каком уровне вешать вытяжку. Найдя оптимальное решение, можно обезопасить себя от возможного распространения не слишком приятных ароматов по всей квартире, не допустив их впитывания в мебельную обивку, шторы и обои.
Конструктивные особенности
Тем, кто интересуется, на каком расстоянии вешать вытяжку, не помешает вначале разобраться с основными особенностями существующих систем. В целом, они представляют собой довольно сложную конструкцию, способную обеспечить принудительный забор и очистку воздуха, загрязненного взвесями, компонентами дыма и продуктами неполного сгорания газа, образующимися в процессе приготовления пищи. Вытяжная система состоит из корпуса, воздухозаборника, нескольких фильтров и элементов электрической вентиляции.
На сегодняшний день выпускаются отводящие и рециркуляционные системы. В первом случае загрязненный воздух просто выводится за пределы квартиры. Во втором воздух, очищенный с помощью угольного фильтра, поступает обратно в кухню.
Разновидности кухонных вытяжек
Все выпускаемые сегодня приборы можно условно разделить на несколько типов. Прежде чем узнавать, как вешать вытяжку, нужно определиться с выбором.
Относительно недорогие, но стильные плоские модели представляют собой своеобразные модули, состоящие из фильтра и вентилятора. Основными недостатками таких вытяжек можно считать сравнительно небольшую мощность и шум, издаваемый в процессе работы. К тому же в них не предусмотрен выход в вентиляционную систему, поэтому нужно подготовиться к тому, что придется периодически менять фильтры, что сопряжено с дополнительными расходами.
Встроенные вытяжки монтируются в специальные подвесные шкафы. Некоторые модели укомплектованы выдвижной панелью.
Этот вариант гораздо качественнее и дороже плоских вытяжек. Качество работы прибора напрямую зависит от того, на какой высоте вешать вытяжку, поэтому данный вариант идеально подходит для кухонь, в которых вентиляционные отверстия располагаются на значительном удалении от плит.
Купольные модели отличаются эргономичным дизайном и не нуждаются в смене фильтров. Все они отличаются не только техническими параметрами, но и типом управления. В зависимости от метода крепления их разделяют на островные и настенные модели.
Особенности монтажа
Перед тем как приступить к установке прибора, следует обратить внимание на рекомендации производителя относительно того, на какой высоте вешать вытяжку. Обычно в технической документации, прилагаемой к оборудованию, указаны гранично-допустимые интервалы, в пределах которых можно осуществлять монтаж. Это нужно для того, чтобы обеспечить максимально корректную работу прибора. Точная высота зависит от многих параметров.
При подборе оптимального расстояния следует обязательно учитывать особенности кухонного интерьера, рост конкретной хозяйки и расположение имеющейся в помещении мебели. Кроме того, рассчитывая, на какой высоте вешать вытяжку, рекомендуется учесть тип выбранного оборудования. Так, стандартный диапазон для наклонных моделей составляет 50-70 см. В среднем рекомендованная дистанция от вытяжки до варочной поверхности газовой плиты составляет 75-90 см, от вытяжки до поверхности электроплиты – 70-80 см.
Как определить точное расстояние?
Рекомендуемый диапазон достаточно широк, поэтому в процессе монтажа часто возникает необходимость точно определить, на какой высоте вешать вытяжку. Для максимально точных расчетов следует учитывать такие нюансы, как:
- Мощность выбранной модели. Для полноценной работы маломощных вытяжек их нужно располагать поближе к варочной поверхности.
- Тип прибора. Наклонные модели рекомендуется размещать пониже.
- Рост хозяйки, которая будет готовить пищу.
Важно, чтобы стоящий у плиты повар не ощущал ни малейшего дискомфорта и не цеплял висящую над головой вытяжку.
Чтобы точно определить расстояние, необходимо отталкиваться от нижней части прибора и месторасположения конфорок.
Почему так важно соблюдать требования высоты монтажа?
Только четко придерживаясь рекомендуемых диапазонов, можно обеспечить максимально эффективную работу данного бытового прибора. Кроме того, в разработанных производителями нормативах учтены требования безопасного использования устройства и противопожарные нормы. Слишком высоко повешенный прибор просто не справится с возложенными на него функциями и не сможет выполнять качественную очистку воздуха. Низко расположенная вытяжка часто становится причиной возгорания оседающих на ее стенках пыли и жира, а также воспламенения фильтров и прочих неметаллических деталей оборудования. Кроме того, низко смонтированный прибор может причинять массу неудобств тому, кто будет заниматься приготовлением пищи.
На какой высоте вешать вытяжку дома
Если ваше любимое занятие – это кулинария, тогда вам следует подумать о правильном оборудовании для кухни. Ведь все запахи, которые исходят от ароматных блюд будут впитывать шторы, обои и кухонная мебель и со временем ваша кухня приобретет очень специфический запах.
Во время жарки, особенно мяса, вверх поднимаются маленькие частички жира и оседают на рабочей поверхности, а также придают неприятны аромат помещению. В связи с этим приобретение вытяжки или воздухоочистителя – это одно из важнейших событий при оборудовании кухни, это оборудование, должно быть, установлено как можно ближе к плите.
Купив это оборудование, у человека, проводящего установку, может возникнуть ряд вопросов. Основной из них — на какой высоте вешать вытяжку? Ведь насколько качественно и долго она прослужит, зависит не только от безошибочного выбора, но и от того насколько правильно она была установлена. Чтобы определиться с высотой крепления вытяжки, нужно в первую очередь определиться, какого типа вытяжку вы хотите установить.
Вытяжки фильтрующего типа
Самым простым устройством является вытяжка, которая просто рециркулирует воздух. При установке такой вытяжки, воздух просто фильтруется через специально предназначенные фильтры без воздуховода и не выводиться на улицу. Такого рода вытяжки имеют название подвесные или фильтрующие. Такого типа устройство не нужно подключать к вентиляционной шахте. Такие вытяжки имеют ряд преимуществ, они практически бесшумны, у них очень стильный и интересный дизайн, их просто устанавливать и у таких вытяжек вполне приемлемая цена. Недостаток заключается в том, что рециркуляция воздуха не всегда полностью устранят запахи в кухне.
Остальные виды вытяжек выводят воздух на улицу. В таком случае нужно обустроить вентиляционную шахту или же просто вывод трубы из вытяжки наружу. Такое оборудование, можно крепить как на потолок над плитой, так и на стену. Если вентиляционные трубы очень заметны, то их можно спрятать с помощью шкафчиков. Таким образом, можно не только частично спрятать трубы, но и сделать полностью незаметным их наличие.
На какой высоте вешать вытяжку над плитой?
Немаловажным является то, что для каждой модели положена своя высота установки вытяжки. Этот критерий, как правило, указывается в инструкции по эксплуатации. Естественно, там указано неточную цифру, но оговаривается определенное расстояние, которое можно варьировать в зависимости от того, какой рост у хозяйки. Если же по каким-то причинам вы не имеете инструкции, то вам следует опираться на стандарты, предусматривающие расстояние от плиты до вытяжки.
Для того, чтоб правильно установить вытяжку, нужно брать во внимание тип — варочной поверхности. Высота вытяжки над газовой плитой должна быть порядка 75–85 сантиметров, расстояние от электроплиты – 65–75 сантиметров.
Высота установки вытяжки над плитой, если вытяжка наклонная составляет 55–65 см для газовой и 35–45 – для электрической. Это расстояние может колебаться на 10 см – это зависит от того, какая мощность устройства.
Розетку для вытяжки обычно располагают на высоте 2–2,5 м. При установке нужно обязательно учитывать, каким образом проходит воздуховод, нельзя, чтоб он перекрывал розетку.
Таким образом, розетку нужно смещать на 20 см в любую сторону от центра, а также на 20 см выше кухонного шкафа. Если пренебречь высотой, на которой нужно установить вытяжку, то от этого может пострадать качество ее работы, а также безопасность ее использования. Если вытяжку повесить выше, чем рекомендуется, то она будет не в состоянии вбирать в себя все пары и запахи, эффективность ее работы будет существенно ниже.
Если вытяжка висит ниже, чем положено, то это увеличивает возможность возгорания, так как огонь может попасть на жир, который отлаживается на фильтрах в вытяжке. Также низко установленная вытяжка, делает процесс приготовления пищи неудобным. При установке вытяжки рекомендуется иметь человека, который смог бы вам помочь, если такого нет, то можно справится самому.
Прежде чем вешать оборудование, нужно отметить предполагаемое место крепежа, предварительно приложив вытяжку.
В современных кухнях можно предусмотреть вытяжку встроенную в шкаф.
Следующим этапом является сверление стен под дюбели. Этот процесс следует делать качественно, так как вытяжка должна крепится очень хорошо. Прикрутив вытяжку, одевает гофру на клапан и надежно закрепляем с помощью силиконового герметика. В среднем, монтаж вытяжки займет у вас около 1-1,5 часа.
Несколько слов о высоте установки вытяжки » BellRado Уютный дом для всех
Категория: Вентиляция и Кондиционирование | Опубликовано: Вчера, 10:11
Изобретение вытяжки можно уверенно назвать настоящим достижением цивилизации. В наши дни редкая хозяйка кухни обходится без такого ценного устройства.
Иначе вся квартира пропахнет долго витающими в воздухе кухонными «ароматами». Однако после покупки этого весьма нужного агрегата появляется важный вопрос: на какой высоте ставить вытяжку, чтобы удобно было использовать её.
На что ориентироваться?
Приобретая вытяжку, потребитель получает вместе с ней и инструкцию. Описание каждой конкретной модели прибора сопровождается указанием высоты установки агрегата над варочной поверхностью. Однако эти рекомендации — не приказы, которые подлежат неукоснительному исполнению. Ведь то, на какой высоте вешать вытяжку, определяется, например, дизайном кухонного помещения, особенностями плиты, ростом хозяйки и т.п.
Имеются оптимальные расчёты, которые, конечно же, можно варьировать в первую очередь в зависимости от типа плиты:
- если плита газовая, то высота купольной или встраиваемой вытяжки находится в диапазоне 75 — 85 см;
- над электроплитой купольная либо встраиваемая вытяжка должна устанавливаться на высоте 65 — 75 см;
- наклонная вытяжка над газовой плитой имеет высоту установки 55 — 65 см;
- высота установки наклонной вытяжки над электроплитой составляет всего 35 — 45 см
Также на высоту установки данного прибора влияет и его мощность.
Допустим, у вытяжки мощность низкая, а её установят на максимальной высоте. В таких обстоятельствах агрегат не сможет обеспечивать полноценное исполнение своих функций.
Цель ограничений
Почему важно учитывать советы, на каком уровне вешать вытяжку, данные в инструкции, и не пренебрегать ими? Рекомендации преследуют две цели: соблюдение безопасности и гарантия качества работы агрегата. Так, превысив максимальную высоту установки вытяжки, хозяева кухни не получат желаемого эффекта. Устройство не сможет захватывать необходимый объём пара, и влажность, запахи и пр. будут оставаться в помещении.
Если же устройство опустить ниже установленного предела, то вытяжка станет помехой в процессе приготовления пищи: ведь на плите нельзя будет разместить высокие кастрюли; жир из сковородки будет попадать непосредственно на корпус вытяжки и т.д. Кроме того, увеличится опасность возникновения пожара.
Прибор может захватить из горелки пламя зажжённого газа. Жир, покрывающий фильтры, вспыхнет моментально. И пожар в данной ситуации гарантирован.
И именно поэтому, отметив соответствующее типу вытяжки расстояние от варочной поверхности до прибора, перед монтажом необходимо проверить наличие электропроводки в намеченных точках. Лишь точное следование параметрам, определяющим, на каком расстоянии вешают вытяжку, поможет превратить всю кухню в комфортную рабочую зону.
Метки к статье: Вытяжка
Островная вытяжка и остров на кухне с высоким потолком
Выбирая вытяжку для заказчиков я столкнулась (и не в первый раз) с такой проблемой как высота вытяжки. Раньше, когда у нас были маленькие с низкими потолками кухни, главным было выдержать нижний предел. То есть нижний предел расстояния между варочной панелью и низом самой вытяжки.
И он нормируется довольно жестко — 65 см для электрических плит и 75 см для газовых. Теперь же, когда потолки могут быть и три метра и три с половиной, и мы делаем остров посередине кухни, возникает другой вопрос. Если устраивающая во всех отношениях (и особенно по части ее цены) вытяжка имеет высоту до 90 см — что делать с образовавшимся расстоянием до низа потолка? То есть, когда стальная труба уже закончилась, а потолок еще не начался:)) Конечно можно опустить подвесной потолок на всей площади кухни или частично над островом. Но не всегда это хочется (или возможно) сделать. Про верхний предел расстояния до низа вытяжки информация довольно туманная, вроде бы и 80 и даже 90 см возможно. Но никакой рекомендации на этот счет даже от производителя мы не получили . И в конечном итого решили остановиться на той высоте, которая у нас получается — а именно 91 см. Ведь биться головой о низко висящую над кухонным островом вытяжку тоже не хочется. И я сделала подборку островных вытяжек, чтобы понять как они смотрятся при различных формах самой конструкции и при высоких потолках.
В принципе многие современные вытяжки имеют такую опцию, как заказ дополнительной удлиняющей трубы. Можно найти вытяжки высотой и до 150 см, но понятно, что это будет дороже.
А уж если кухня расположена под скатной крышей, то тогда увеличивать трубу придется в любом случае. И не факт, что трубы-удлинителя от поставщика вытяжки хватит, чтобы набрать нужную высоту. Тогда вероятно надо искать способы — либо делать что-то на заказ (как на этих снимках), либо придумывать перепадыв самом потолке. Только вот как их обыграть, чтобы это выглядело убедительно?
Мощные вытяжки длиной 150 см и более выглядят довольно громоздко. И тем более такую внушительную конструкции нельзя вешать слишком низко над островом. Если стандартный прилавок имеет высоту 90 см, то, глядя на фотографию ниже, можно сказать что расстояние между вытяжкой и столешницей никак не меньше 80 см, а скорее всего те же самые 90 см.
Конечно, формы вытяжек сейчас очень разнообразны — например, модели с цилиндрическим воздуховодом. Они довольно высокие и очень изящные. Но площадь самой рабочей поверхности вытяжки невелика. Она подходит только для стандартных варочных панелей.
Можно найти и такие эксклюзивные модели, где нижний блок из муранского стекла является своеобразным декоративным элементом. Гламурно, и с претензией. Ну, возможно, низкое нависание такой загадочной красоты над плитой будет не так бросаться в глаза. Только бы вот не разбить ее случайно поварешкой в порыве кулинарной страсти:))
Если нет готовой удлиняющей части воздуховода, то тогда приходится ее придумывать. И она не всегда совпадет по цвету и фактуре со сталью от производителя. Тогда можно попробовать подать это как такой декоративный ход — сочетание различных отделок поверхностей и т.п.
Или же попробовать сделать из чего-то (скорее всего гипсокартона, окрашенного в цвет потолка) некое обрамление верха трубы, как база у колонны — только сверху.
Но тут важны пропорции.
Существуют некоторые модели вытяжек, например итальянских, которые изначально белого цвета (есть даже черного — на любителя). И можно как вариант ассмотреть такой прием — увеличить высоту монтажа и скрыть саму трубу в коробе из гипсокартона. И окрасить его в белый цвет. Опять же надо рисовать и смотреть пропорции — не будет ли это выглядеть нелепо.
Но вот на этих фотографиях подобные вытяжки смотрятся вполне себе хорошо.
Конечно производители задумываются о возможности регулирования высоты монтажа вытяжки. Плавающая подвеска вытяжки позволяет более свободно ее регулировать. Но, когда это просто тросы, на которых крепится вытяжка, прогоняющая воздух через фильтры, — то это не очень хорошая идея для больших помещений. Потому что, если кухня и гостиная не разделены перегородками, то вытяжка обязательно должна быть подсоединена к вентканалам и вентшахте. И даже такие экстравагантные новейшие модели — как вытяжка Bulthauр (самая нижняя), могут не спасти от запаха еды в разных уголках большого пространства.
Классические модели лучше сочетаются с массивными окрашенными коробами, в которых можно скрыть что угодно.
Оригинальные медные вытяжки — вещь абсолютно нестандартная и придающая кухне уникальность. Для больших домов и больших кухонь, и для тех, кто хочет сделать свой дом душевным и рукотворным. Лучший вариант для стиля кантри.
На какой высоте от плиты установить вытяжку. Как правильно установить проточную вытяжку над газовой плитой? Почему важно придерживаться высот установки
Во время приготовления еды от плиты к потолку поднимается гарь и разные испарения. Через некоторое время в помещении становится трудно дышать – это значит, что через отдушину недостаточно хорошо вытягивается загрязненный воздух. Поэтому требуется установка кухонной вытяжки для принудительной циркуляции воздуха. Но сначала нужно определиться, какой режим работы агрегата требуется именно в вашем случае, а затем – как установить вытяжку на кухне правильно.
Устройства принудительной вентиляции для кухни различаются по режиму работы. Агрегаты бывают:
- прокачивают загрязненный воздух сквозь блок фильтров, состоящих из предварительного (для грубой очистки) и угольного (для очистки воздуха от запахов). Для такого агрегата не требуется подключение к вентиляционному каналу, поэтому в данном случае монтаж будет самым простым. Но, по качеству очистки воздуха в комнате, такой тип аппаратов проигрывает проточным.
- эффективно откачивают загрязненный воздух из помещения в вентиляционную шахту или канал, который выводится наружу (если вы устанавливаете вытяжку в частном доме).
Необходимая мощность аппарата
Подсоединение нулевого провода к глухой нейтрали
В продаже имеются несколько видов воздуховодов для бытовой вентиляции:
- ПВХ (пластиковые) воздуховоды. Имеют хорошую прочность и легкий вес. Благодаря гладкому покрытию не создают шума при движении по ним потоков.

- Алюминиевый гофрированный воздуховод – свободно гнется, растягивается и легко подгоняется под любой размер. Не создает вибрации и гула, но имеет неэстетический вид, поэтому, обычно, прячется в шкаф, специальный короб или скрывается подвесным потолком.
Перед тем, как установить вытяжку на кухне, позаботьтесь о том, чтобы вы не закрыли трубой единственную штатную отдушину в помещении. В случае одной отдушины, часто пробивают еще один выход из шахты и ставят обратный клапан, который будет закрывать поток в него, при включении устройства.
Еще есть вариант применения специального короба с клапаном-хлопушкой.
На рисунке установленный клапан имеет красный цвет. При выключенных вентиляторах, он лежит горизонтально, и воздух может беспрепятственно проходить через короб естественным путем. При включении вентиляторов, клапан поднимается и перекрывает выход воздуха обратно в помещение, тем самым направляя его в шахту. Материалом может послужить какой-нибудь легкий материал, например, пластик или алюминий.
Но этот вариант не подходит, если производится , так как она монтируется в навесной шкаф.
Для частных домов лучшим вариантом будет пробить в стене дополнительное отверстие под канал и не затрагивать имеющийся вертикальный. В дополнительное отверстие нужно вывести воздуховод от устройства. Но на выходе обязательно должен устанавливаться обратный клапан , предотвращающий попадание воздуха снаружи.
Обратный клапан
Если в обычной квартире отсутствует дополнительный канал, и пробить отверстие в наружной стене не представляется возможным, то можно этот канал расширить и применить специальный переходник, имеющий два отверстия.
Через нижнюю решетку воздух из помещения поступает в шахту за счет естественной тяги. В то же время в верхнем отверстии имеется козырек, который не дает потоку воздуха из агрегата выходить через решетку обратно в комнату. Хотя обратная утечка конечно же есть, но она минимальна, в сравнении с исходящим потоком.
На рисунке ниже хорошо видно, как подсоединяется воздуховод к переходнику, и при этом сохраняется естественная тяга.
Таким образом, монтаж кухонной вытяжки своими руками по плечу лишь домашним мастерам. Выполнение задачи требует аккуратности и внимательности. Ну, а для тех, у кого нет навыков в обращении с инструментами, или нет свободного времени, лучшим вариантом будет приглашение специалиста для решения этого вопроса.
После приобретения кухонного устройства по воздухообмену, возникает закономерный вопрос – как установить вытяжку над газовой плитой в частном доме своими руками?
Актуальность вопроса обусловлена в первую очередь тем, что современная кухня переполнена бытовой техникой. Сложно себе представить комфортную жизнь без микроволновки, холодильника, мультиварки или плиты. Перечисленный список можно дополнить и вытяжкой. О том, как как установить вытяжку, выполнить монтаж этого устройства и пойдёт речь в сегодняшнем материале.
Нужна ли вытяжка на кухне с газовой и электроплитой
Многие хозяева интересуются, а нужна ли вытяжка на кухне с газовой плитой (электроплитой) в принципе.
Отсутствие вытяжного агрегата приводит к нескольким отрицательным моментам.
Самые неприятные – в небольшом помещении накапливается огромное количество пара и дыма. При продолжительном воздействии наблюдается повышение влажности, что отрицательно сказывается на целостности облицовочных материалов. В процессе готовки остаточные испарения и частички жира должны выводиться наружу.
Разновидности устройств
Перед тем как как установить вытяжку, необходимо определиться с конкретным видом бытового прибора. Самые популярные на сегодняшний день следующие разновидности устройств:
- островные;
- каминные;
- угловые;
- встраиваемые;
- фильтрующие.
Вытяжные устройства оснащаются разными типами фильтров:
- Вытяжки для газовой плиты с угольными фильтрами. Отличаются эффективным устранением неприятных запахов, жировых частичек. Работают преимущественно по принципу рециркуляции воздуха.
- Аппараты с металлической очистной решёткой (жироулавливателем).
Подходит для газовых плит и кухонь, которые имеют доступ к вентиляционной шахте. Если он отсутствует, то монтаж проводить не рекомендуется. Главное их достоинство – качественное поглощение испарений, неприятных запахов. Комплектуются фильтрами алюминиевого типа.
Если вытяжка на кухне установлена правильно и профессионально, то воздух будет эффективно очищаться от испарений посредством фильтрационного механизма, а затем перенаправляться в помещение обратно. Что касается агрегатов, оборудованных жироулавливателями, то они не фильтруют загрязненный кислород, а отводят его наружу.
Встречаются и универсальные модели, обеспечивающие не только фильтрацию, но и отвод воздуха. Всё зависит от конкретных требований и критериев.
Некоторые квартиры не позволяют подсоединить вытяжной аппарат к вентиляционной системе. Для таких случаев приходится устанавливать бытовые устройства, работающие по рециркуляционному принципу (фильтрация воздуха и обратное его перенаправление в помещение).
Какая система нужна в каждом конкретном случае, решать только хозяевам, но рекомендуем приобретать агрегаты с угольными фильтрами.
КПД и производительность вытяжки
Современная вытяжка над газовой плитой способна обеспечивать разные уровни воздухообмена (значение может варьироваться в пределах 200-1400 кубометров ежечасно). Но не всегда стоит приобретать вытяжки с максимальной мощностью. Достаточной считается скорость перекачки воздуха на уровне 500 м3/час.
Расчётное значение КПД умножают на объём помещения и на 10. Итоговый результат умножают на 1.3 (это небольшой запас, который должен быть у каждого бытового аппарата). На выходе получим значение производительности, достаточное для очистки воздуха при средних нагрузках (аппарат не функционирует на максимальных оборотах и не возникает неприятный шум). Данное значение КПД будет оптимальным.
В паспорте устройства принято указывать мощность отвода испарений в вентиляционный воздуховод. Если кухонный аппарат работает в 2-х режимах, то мощность второго составит 60% от паспортных данных (при прохождении через фильтр теряется до 40%).
Абсолютно бесшумных вытяжек не существует. Но всегда можно подобрать вариант с оптимальными значениями шума и производительности. Приемлемый уровень – 36 дБ при работе. Такими значениями могут похвастаться системы, работающие от электродвигателя, установленного в звукоизолированном пластиковом коробе.
Как установить вытяжку в шкаф
Чтобы установка вытяжки над газовой плитой доставляла хозяину минимум хлопот, следует учесть несколько важных моментов. Учитываются индивидуальные особенности конкретной модели кухонного устройства, тип фильтров, расположение вентиляционной шахты и т.п.
Монтаж хлопушки (антивозвратного механизма)
Остановимся подробнее на особенностях установки воздушной хлопушки. В первую очередь стоит поставить алюминиевое или оцинкованное изделие. Сейчас в продаже представлен широкий ассортимент таких решений. Монтируется он непосредственно перед вентиляционной шахтой.
Для обеспечения максимального удобства вытяжку над газовой плитой в частном доме лучше установить в шкафу, расположенном над основанием варочной поверхности.
Монтаж корпуса в кухонный гарнитур не вызывает никаких сложностей. Затем отверстия и щели заполняются монтажной пеной, благодаря чему аппарат фиксируется очень надёжно. За счёт этого нивелируется резонирование бытового прибора при его работе.
Хлопушку не рекомендуется устанавливать сразу же. Вначале следует поместить вытяжное устройство и обозначить места, где будут находиться отверстия. Для удобства шкаф предварительно снимают, а внутри проделываются необходимые вырезы и формы.
Резка внутри кухонного гарнитура упроститься, если диаметр отверстия обозначить несколькими сквозными дырками (по кругу). После этого вставляется лобзик и с его помощью проделывается отверстие. Они должны быть в каждой полке, если таковые присутствуют в шкафу. Это упростит монтаж воздуховода.
Установка воздуховода
Монтаж воздуховода проводят в такой последовательности:
При установке необходимо свести к минимуму количество изгибов гофры или пластиковой трубы.
Это позволит обеспечить хорошую тягу, поскольку повороты снижают мощность в среднем на 10% в каждом колене.
Как установить вытяжку: последовательность стандартной установки
Хозяева интересуются: как правильно установить вытяжку над газовой плитой в тех случаях, когда невозможно разместить прибор над варочной поверхностью в кухонном гарнитуре? Очевидно, что давно не всегда практично размещать агрегат в конструкции мебели, поскольку под воздействием влажности эти аксессуары портятся, теряют первоначальный эстетичный вид.
Практически все современные настенные шкафы узкие, что исключает возможность размещения в них широких аппаратов. Рекомендуемая высота вытяжки над газовой плитой – 650-750 мм.
Монтаж выполняется в несколько этапов :
- При помощи металлических уголков формируется прямоугольная конструкция. Такая рама используется для поддержки корпуса вытяжного устройства.
- Саморезы-шпильки как нельзя лучше подходят в качестве фиксаторов для закрепления на стене.

- Вытяжка подключается к электросети.
Газовщики акцентируют внимание на необходимости заземления вентиляторов, чтобы остаточное напряжение отводилось во внешнее пространство. Расстояние от газовой плиты до вытяжки указывается в паспортных данных к каждой модели агрегата.
Важные моменты
Специалисты выделяют несколько важных аспектов, заслуживающих внимания на этапе установки прибора.
- Фильтры чистят или заменяют каждые 2-3 месяца (учитывая интенсивность эксплуатации). Большое количество жира и остаточных веществ могут привести к возгоранию конструкции.
- Высота установки вытяжки над газовой плитой – 65-75 см. Если установить прибор слишком низко, то он не справится с нагрузкой и повышенной температурой, что чревато выходом агрегата из строя.
- «Золотое» правило подбора вытяжных устройств – какая плита, такая должна быть и вытяжка.
- Кухонный прибор подключают к независимой от основной части дома электросети.
При монтаже соблюдают технику безопасности.
Профилактическая чистка вытяжки от гари проводится 1 раз в 2 квартала, при средних нагрузках. Зная, на какой высоте лучше монтировать устройство, можно сэкономить небольшую сумму на услугах специалистов.
Главный вопрос — на какой высоте устанавливать вытяжку, чтобы обеспечить ее максимальную эффективность? Ведь, если она будет тянуть “вполсилы”, на предметах обстановки, декора, на шторах и других текстильных элементах будет по-прежнему скапливаться жировой налет. Оседает он также на потолках и стенах, и на полах.
Рекомендации по высоте установки даются производителем и отражены в инструкции, поэтому очень важно прочить ее перед тем, как приступать к монтажу. Обычно указывается некоторый диапазон значений, который подходит к конкретной модели. Только при соблюдении этих значений вытяжка действительно справится с очисткой воздуха.
К сожалению, далеко не всегда удается получить инструкцию — эти полезные брошюры часто теряются, либо рвутся при упаковке, и прочитать необходимое не получается.
Поэтому полезно знать, на какой высоте устанавливать вытяжку рекомендуют специалисты. Эта высота зависит, прежде всего, от того, какая плита установлена в вашей кухне.
- Для газовых плит высота расположения вытяжки над рабочей поверхностью должна находиться в диапазоне от 75 до 85 см.
- Для электрических или индукционных плит высота установки может быть меньше — от 65 до 75 см.
В последнее время широкое распространение получили наклонные вытяжки. Они более эстетичны, и лучше вписываются в современные стили интерьера. Для них высота установки несколько меньше:
- для газовых плит — 55-65 см,
- для электрических и индукционных плит — 35-45 см.
Почему важно придерживаться высот установки?
Установка на меньшей высоте может привести к пожару, будет мешать приготовлению еды и не эстетично выглядит. Слишком большая высота не позволит улавливать все загрязнения, поступающие в воздух, и коэффициент полезного действия вытяжки снизится.
Установка розетки для вытяжки
От высоты установки вытяжки над плитой зависит расположение розетки, куда она будет подключаться. Обычно розетку монтируют непосредственно над вытяжкой. Неплохой вариант — закрепить розетку выше линии навесных шкафов примерно на 10-30 см. При этом не забудьте сместить отверстие под розетку на 20 см в сторону от оси симметрии вытяжки, поскольку по центру проходит вытяжной канал.
Во время приготовления пищи аппетитные запахи не только распространяются по всей кухне и далеко за ее пределами, но и въедаются в предметы мебели, стены и пр. В итоге многие хозяйки жалуются, что у них дома везде пахнет кухней. Также возле плиты обычно столы и шкафчики покрываются жирным налетом, который также образуется во время приготовления еды. Решить проблему поможет хорошая вытяжка для кухни. Но не все знают, на какой высоте вешать вытяжку, чтобы она максимально эффективно выполняла свои функции, но при этом не мешала повару.
Типы вытяжек
В первую очередь нужно решить, какого типа устройство будет работать на кухне.
От этого зависит качество вентиляции воздуха.
Фильтрующие. Самые простые и дешевые вытяжки не требуют подключения к вентиляционной шахте или отвода трубы на улицу, за окно. Они пропускают воздух через фильтры и выпускают обратно в комнату. Такой принцип работы называется рециркуляцией. Они достаточно эффективны при небольших объемах готовки, но если плита используется регулярно и подолгу, то фильтрующая вытяжка не сможет обеспечить качественное очищение воздуха, т. к. имеет низкий КПД. С другой стороны, именно такие вытяжки проще всего установить, они не требуют особенных условий подключения. Также больше всего дизайнерских решений имеют именно такие модели. Еще один неоспоримый плюс – тишина во время работы.
Все остальные виды выводятся либо на улицу, либо подключаются к вентиляционной шахте. В зависимости от способа установки их разделяют на купольные, встраиваемые и плоские. Не эстетично выглядывающие трубы обычно прячут за шкафчиками, в некоторых случаях, их удается полностью скрыть.
Такие вытяжки обладают большей мощностью, более эффективно справляются с загрязнениями и запахом. Однако для установки придется вызвать профессиональных монтажников.
На какой высоте должна быть вытяжка
Не всегда в инструкции указано, на какой высоте вешать вытяжку. Это в какой-то мере упрощает задачу, т. к. предоставляет больше возможностей выбора. С другой стороны, люди зачастую вешают вытяжку неправильно: слишком высоко или слишком низко. В первом случае снижается эффективность работы устройства, во втором – просто неудобно готовить. Поэтому существуют некоторые рекомендации, которые нужно учитывать при размещении вытяжки. Как правило, дается диапазон оптимальных значений. Далее, исходя из особенностей помещения и соображений собственного удобства, принимается решение об окончательной высоте размещения вытяжки.
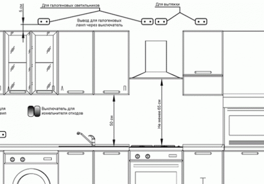
Закономерности размещения зависят от характеристик самого устройства, его типа, а также от типа плиты. Так, высота вытяжки над газовой плитой должна быть в пределах 75-85 см, в то время как расстояние до электроплиты меньше на 10 см – всего 65-75 см.
Если вытяжка имеет наклонную форму, то дистанцию между устройством и варочной поверхностью рассчитывают по нижнему краю. В этом случае расстояние до газовой плиты составит 55 – 65 см, а над электрической – 35-45 см. Допустимо и большее колебание высоты. В пределах еще 10 см от указанных диапазонов.
Высота установки вытяжки над варочной панелью такая же как и над электрической плитой.
Почему так важно разместить вытяжку правильно
Однако максимальное приближение все же не гарантирует максимальной эффективности работы устройства. Тем не менее расстояние от плиты до вытяжки – это один из ключевых параметров, влияющих на продуктивность работы устройства, а также безопасность эксплуатации.
Так, если ее разместить слишком высоко, то КПД вытяжки снизится в несколько раз. Пар будет рассеиваться до того, как поднимется на необходимую высоту, следовательно часть его будет расходиться по кухне и по всей квартире.
Если вытяжка будет слишком близко, то велика вероятность возникновения пожара, т.
к. на вытяжке копятся в том числе жировые отложения и пыль. Они легко и быстро загораются. Чтобы появился огонь им достаточно сильно нагреться. Затем пламя быстро перекидывается шкафчики, столешницу и т.д. А если внизу открытый огонь, как у газовой плиты, то вытяжка может мгновенно вспыхнуть.
Также размещение на маленькой высоте будет мешать готовить, повару придется сильно наклоняться, чтобы проследить за тем, что варится. Следовательно, это будет неудобно.
Размещение розетки
Еще один важный момент – правильное размещение розетки, т. к. от этого зависит безопасность и комфорт использования вытяжки. Как правило, розетку устанавливают на высоте от 2 до 2,5 м от пола. Ее смещают немного в сторону от центра устройства (на 20-30 см), чтобы воздуховод не закрывал ее. Хорошо, если есть небольшое расстояние между ними. Желательно проследить за тем, чтобы расположение розетки позволяло в любой момент отключить прибор от сети. Это одно из требований пожарной безопасности.
Монтаж
Закрепить вытяжку в большинстве случаев можно самостоятельно. Вся процедура занимает в среднем 1,5 ч. Но даже при самом плохом варианте развития событий – не более 2 ч. Проводятся монтажные работы в несколько этапов:
- Сначала проводят подготовительные работы: убирают все лишнее со стены, очищают вентиляционную шахту и т.д.;
- Затем вытяжку прикладывают к стене и отмечают место крепления;
- Перфоратором высверливают отверстия для крепления дюбелей и прикрепляют вытяжку. Важно следить за тем, чтобы она размещена была ровно;
- Гофра прикрепляется к вытяжке (можно усилить соединений герметиком) и протягивается к вентиляционной шахте;
- Второй конец гофры запускают в шахту как можно глубже. Там ее также фиксируют с помощью герметика или монтажной пены. Однако если планируются дополнительные строительные работы на кухне, этого лучше не делать, чтобы была возможность перемещать вытяжку и гофру;
- Поверх гофры устанавливают специальную накладку, которая придает завершенный вид всей конструкции.
Как правило, ее тоже нужно крепить на шурупы, саморезы или дюбели.
Уход за вытяжкой
Какой бы дорогой и современной ни была приобретенная техника, за ней необходимо ухаживать. Это предотвратит возникновение пожароопасных ситуаций, а также продлит срок эксплуатации устройства.
В первую очередь, необходимо регулярно менять или мыть фильтры и жироулавливатели. Именно от них зависит качество очистки воздуха. Дело в том, что со временем они забиваются и хуже пропускают воздух. Также жир является легковоспламеняющимся материалом, который загорается даже при сильном нагревании. Остановить такой пожар очень нелегко.
Фильтрами желательно запасаться заранее, это упростит и ускорит процесс их замены.
Нужно следить и за внешним видом вытяжки, иначе она быстро станет некрасивой, покроется пятнами и т. д.
Итак, устройство можно установить самостоятельно, но при этом нужно соблюдать некоторые правила безопасности и нормы. Не стоит забывать и о таком параметре, как высота установки.
Именно она определяет качество работы всей системы, а также безопасность использования аппарата.
От качественной вентиляции в помещениях зависит микроклимат и здоровье обитателей. Особенно важно следить за уровнем проветривания в таком месте, как кухня. Отсутствие доступа свежего воздуха может привести к интоксикации организма.
В то же время неправильно установленная вытяжная система не даст никакого эффекта и кислорода не прибавится. Необходимо разобраться: как правильно установить вытяжку над газовой плитой? Если учесть все моменты, это можно с успехом сделать даже без помощи профессионалов.
Виды вытяжек
Не всегда бывает просто выбрать вытяжку для газовой плиты. Вытяжка для кухни бывает разных типов, и отличаются они, в основном, методом монтажа. Различают такие виды оборудования:
- подвесные;
- встраиваемые;
- настенные;
- угловые;
- островные.
Над плитой и особенности помещения напрямую будут влиять на выбор модели для кухни.
Подвесную систему обычно размещают под полками, а встраиваемую «прячут» внутрь шкафов или полок, расположенных непосредственно над печкой.
Настенные системы крепятся непосредственно к стене на определенном уровне над плитой. Когда газовая печка расположена в углу комнаты, необходима установка угловой вытяжной системы. Такую вытяжку специально изготавливает такой формы, чтобы она полноценно справлялась со своими функциями в данном месте помещения.
Островные вытяжные системы обычно крепят непосредственно к потолку. Применяются они в тех местах, где плиты расположены по центру комнаты и закрепить вытяжку по-другому просто невозможно. Чаще всего такое расположение встречается в профессиональных кухнях, например, в столовых или ресторанах или в больших кухнях в жилых квартирах с нестандартной планировкой.
Определение мощности
Чтобы вентиляция кухни с газовой плитой полноценно выполняла свои функции, важно уметь правильно рассчитать мощность будущей вытяжной системы.
В противном случае даже при правильной установке вытяжки, свежего воздуха на кухне не будет.
Чтобы не ошибиться в выбранной мощности, стоит учесть, сколько в семье человек, как часто готовят и какие блюда предпочитают. Те, кто редко готовят помногу, часто только для себя, а в семье 1-2 человека, вполне будет достаточно мощности 200-300 м³/ч.
Для кухни средних размеров и семьи из 3-х человек, в которой периодически любят готовить необычные блюда, требующие длительной работы газовой плиты, необходима система, мощностью 300-400 м³/ч.
Если в квартире проживает большая семья, или же вытяжную систему планируется ставить в большую кухню частного дома, потребуется оборудование, мощностью до 600 м³/ч. Если следовать этим простым указаниям, вентиляционная система будет полноценно удалять несвежий воздух из кухни, и работа с продуктами будет приносить только удовольствие.
Как расположить оборудование
Чтобы в кухне всегда было свежо, важно знать, на какой высоте вешать вытяжку над газовой плитой.
Немаловажно учитывать рекомендации производителя, которые подробно описаны в инструкции. Не последний фактор в определении расположения вытяжки – удобство при последующем использовании.
Разные нормы расположения вытяжки для электрических и газовых плит:
- минимальная высота от электрической плиты до вытяжной системы – 65 см;
- минимальная высота между вытяжкой и поверхностью газовой плиты – 75 см.
В первую очередь, отличие в нормах сделано ради безопасности человека. Достаточное расстояние обеспечивает защиту от самовозгорания. Нередко в корпусе вытяжной системы есть элементы из пластика, которые могут загореться из-за слишком близкого расстояния к огню и высоких температур.
Маленькое расстояние между вытяжкой и печью может создавать большие неудобства при приготовлении пищи. К примеру, есть кастрюли большого размера. Если вытяжная система будет расположена слишком низко, хозяйка не будет иметь свободного доступа к такой посуде, что также может привести к травмам и ожогам.
В то же время высота установки вытяжки над плитой не должна быть слишком большой. Большое расстояние между плитой и вытяжкой приведет к тому, что загрязненный воздух не сможет полноценно удаляться из помещения, а будет разноситься по кухне.
Высота установки вытяжки над газовой плитой считается нормальной, если находится в диапазоне от 70-90 см. Решая, на какой высоте вешать вытяжку, важно учесть и рост повара. Когда вытяжная система расположена слишком низко, можно удариться об нее головой.
Дополнительные условия
Важно учесть не только расстояние от плиты до вытяжки, но и рабочую площадь системы. Ни при каких обстоятельствах она не должна быть меньше площади плиты. Если ширина печи составляет 60 см, то вытяжка может быть 60 и более сантиметров. В случаях, когда размещение вытяжной системы нужно выполнить выше нормы, размеры вытяжки должны быть больше.
Существуют наклонные воздухозаборники. Чаще всего они не настолько эффективно вбирают в себя загрязненный воздух.
Это стоит учесть, монтируя вытяжную систему. В таких случаях допускается пренебречь минимальной высотой размещения вытяжки. Нижний край может быть закреплен на высоте от 55 см.
После того, как удалось подобрать подходящую вытяжную систему, следует разобраться, как установить вытяжку на кухне правильно.
Процесс установки оборудования
Требования к вентиляции кухни с газовой плитой четко прописаны в нормативно-правовых документах. Если им следовать, дома всегда будет свежо и безопасно.
Монтаж должен состоять из нескольких этапов.
- Составление чертежа предполагаемого расположения вытяжки и энергоснабжения.
- Установка.
- Проверка фильтров.
Чтобы не ошибиться, установка вытяжки над газовой плитой должна проводиться в соответствии с заранее составленным чертежом. Составить схему необходимо и в тех случаях, когда монтаж оборудования планируется в уже используемом помещении. Это поможет правильно учесть все коммуникации и просчитать положение вытяжки.
Важно отметить карандашом на стене предполагаемое место размещения вытяжки. Нельзя забывать о том, что вытяжное устройство требует источник электричества. Для этих целей подводится отдельная розетка, которая будет снабжать это оборудование. Если нет заземления, точку следует снабдить отдельным УЗО, что обеспечит самостоятельное отключение на случай утечки тока. Это необходимо для безопасности пользователей.
Важно внимательно отнестись к подготовке точки питания. Не должно быть никаких скруток электропроводов, просто заизолированных изолентой. Все должно быть выполнено в соответствии с нормами.
Перед началом процесса, важно повторить правила установки вытяжки и проверить комплектацию устройства. Следует заранее подготовить все необходимые инструменты, чтобы позднее не отвлекаться.
Вначале проводится сборка воздуховода. В стене проделываются отверстия для дюбелей для последующего крепления фиксаторов вытяжки. С помощью уровня нужно обязательно проверить, горизонтально ли будет расположена вытяжка.
На вкрученные шурупы вешается вытяжка без внешнего короба. В случае проточной системы вытяжную трубу соединяют с вентиляционным каналом. Не надевая короб, устройство включают.
Если проверочный запуск показал, что устройство работает исправно и все режимы переключаются хорошо, прибор выключают и надевают короб. Оказывается, совсем не сложно понять, как повесить вытяжку. Перед началом работ важно внимательно прочитать инструкцию производителя и только потом приступать к работам.
Правильная установка вентиляционной системы на кухне позволит создать приятную и здоровую атмосферу. Все, кто будут там работать, будут ощущать свежесть и хорошо себя чувствовать.
Важна как воздух: 11 критериев выбора вытяжки
Вы устанавливаете многоступенчатые системы очистки воды, задумываетесь о вторпереработке и сортировке мусора, но все еще гораздо меньше внимания уделяете заботе о воздухе, которым дышите? А ведь все уже продумано и предусмотрено, нужно только выбрать правильную вытяжку для вашей кухни.
Спросите экспертов
В интернете опубликовано множество гайдов по этой теме разной степени полноты и точности. Казалось бы, зачем создавать еще один? Потому что все эти разрозненные куски пазла реально объединить в один. Так гораздо удобнее, правда?
Почему это решили сделать мы? Продукция Pyramida на рынке уже 18 лет, за это время продано более 1,7 млн вытяжек, каждая третья модель в украинских кухнях — нашего бренда. Мы буквально научили украинцев пользоваться вытяжками. Мы уделяем приоритетное внимание аудитории, собираем фидбэки и постоянно совершенствуем свою технику. Поэтому точно знаем, на что важно обратить внимание, чтобы покупка стала разумной, и готовы делиться своими знаниями.
Чтобы не перечитывать горы литературы, ознакомьтесь с нашим гайдом или обратитесь за помощью к нашим консультантам более чем в 100 розничных магазинов быттехники и электроники по всей Украине. Они также получают исчерпывающую информацию о моделях и смогут оказать квалифицированную помощь в выборе.
Стиль и комфорт
Планирование кухни начинается с визуализации. Шкафчики, столешница, фасады — все это очень увлекательно. И важно правильно вписать вытяжку, чтобы она стала изюминкой стиля, а не соринкой в глазу.
Одно из преимуществ нашего бренда без лишней скромности — ассортимент, самый широкий ассортимент вытяжек в Украине. В каталоге Pyramida представлено все разнообразие вытяжек по цветам, материалам и стилям. Можно подобрать модель в любом стиле: high-tech, лофт, классика. Кстати, для любителей классики у нас есть отдельная серия — Rustico.
Определились с дизайном — это шаг №1. Идем далее. Переходим к техническим параметрам.
Выбор продолжаем с типа конструкции и способа монтажа.
1. Тип конструкции вытяжки и способ монтажа
В ассортименте Pyramida вы найдете и высокотехнологичные хай-тек-модели, и вытяжки, украшенные кантом, и наклонные, напоминающие плоский телевизор.
По типу конструкции различают вытяжки:
• плоские;
• полновстраиваемые;
• телескопические;
• купольные;
• декоративные;
• наклонные.
Самые доступные по цене — плоские вытяжки. Они компактные, легко крепятся под навесными шкафчиками над плитой. Подходят для маленьких кухонь и квартир, в которых нет возможности смонтировать воздуховод.
Встраиваемые вытяжки стоят дороже, но отличаются большей мощностью плюс привлекают незаметностью. Они легко вписываются в любой интерьер.
В телескопических моделях за счет выдвижной панели увеличивается площадь всасывания воздуха, то есть работает такая вытяжка эффективнее, чем плоская.
Еще один плюс встраиваемых (телескопических) вытяжек — над ними будет место для дополнительных кухонных шкафчиков. Это оптимальное решение для небольших кухонь, в которых важно рационально использовать каждый сантиметр пространства.
Купольные, наклонные и декоративные вытяжки отличаются большой мощностью, подходят для просторных кухонь и студий, кроме того, имеют привлекательный дизайн и оснащаются полезными современными опциями (таймер, автоматическое отключение и т. п.). Широкий ценовой диапазон позволит подобрать оптимальную вытяжку.
2. Размеры
Чаще всего в наших кухнях используются стандартные размеры для вытяжек — 500 или 600 мм по ширине. Подбирается размер модели в зависимости от ширины варочной поверхности: ширина вытяжки должна быть равна ей или быть немного шире, чтобы «покрывать» весь периметр площади приготовления. Тогда она будет эффективной.
Есть модели и нестандартные, к примеру шириной 900 мм, но встречаются они крайне редко и в основном в интерьерах с нестандартной планировкой. Модели до 1200 мм — профессиональные, в жилых помещениях такие обычно не устанавливают, так как в них просто нет потребности.
Обратите внимание также на важный параметр!
Вытяжку стоит разместить на высоте 55–65 см от газовой поверхности и 45 см — от электрической соответственно.
Допустимое отклонение — примерно 5 см. Это связано с требованиями пожарной безопасности — материалы, из которых сделана вытяжка, не должны перегреваться, что возможно при слишком низком ее монтаже. К тому же в таком случае вы будете просто биться о нее головой — это очень раздражает.
Если повесить вытяжку слишком высоко, она не справится со своей работой.
3. Уровень шума
Производительность, конечно, важнее, но мифы и слухи серьезно влияют на то, как люди выбирают товар. Если говорить о вытяжках, то есть две крайности — либо покупатели пытаются найти абсолютно бесшумную модель, либо откладывают покупку потому, что «все они гудят как реактивный самолет на взлете». Поэтому на уровень шума внимание обращают раньше, чем на цифры в графе «производительность».
По новым санитарным нормам допустимые значения уровня шума в жилых помещениях в дневное время не должны превышать 40 дБ, в ночное — 30 дБ.
Все модели Pyramida работают в допустимом по санитарным нормам диапазоне.
Уровень шума зависит от выбранной скорости работы и на максимальной может достигать 60 дБ — это сравнимо с оживленным разговором двух людей и тише, чем звук обыкновенного пылесоса.
Важный аспект — правильность установки. Доверьте это дело профессионалам, потому что если ее «по-быстрому» повесит ваш сосед, неисключены ошибки монтажа, которые приведут к нежелательному шуму и грохоту. Вы будете грешить на неудачный выбор модели, а всему виной окажутся не слишком прямые руки. Раз уж вы приобрели качественную технику, не доверяйте ее монтаж непрофессионалу.
Эффективность
Залог свежего воздуха в кухне и сохранности окружающей мебели — правильно подобранная вытяжка. Чтобы ваша кухня не тонула в запахах и туманах, высчитайте необходимую производительность и определитесь с режимом работы в зависимости от возможности монтажа воздуховода.
4. Производительность*
Разумеется, для своей кухни вы выбираете лучшее, но здесь нет смысла гнаться за максимальными цифрами.
Лишняя мощность обернется только лишними тратами — зачем вам это? Оптимальная производительность зависит от площади кухни и высчитывается по формуле:
П = (ПК * ВП — ОМ) * 15 * 1,5 — для кухонь с газовой плитой;
П = (ПК * ВП — ОМ) * 10 * 1,5 — для кухонь с электроплитой,
где П — производительность,
ПК — площадь кухни, м2,
ВП — высота потолка, м,
ОМ — объем мебели в кухне (обычно принимается в размере 15% от объема кухни),
1,5 — приблизительная пропускная способность, при которой вытяжку не придется постоянно включать на полную мощность,
10 — столько раз должен меняться воздух в кухне с электрической плитой, согласно санитарным нормам (15 — для газовой).
Например, расчет для кухни площадью 10 м2 и высотой потолков 3 м будет выглядеть так:
с газовой плитой: 10 м2 * 3 м — 15% * 15 * 1,5 = 573,75 м3;
с электрической плитой: 10 м2 * 3м — 15% * 10 * 1,5 = 382,5 м3.
Ниже этого значения брать вытяжку не имеет смысла, поскольку она просто не справится со своей задачей.
*Вы также можете встретить новое наименование этой характеристики: свободный выход потока воздуха.
5. Режимы работы
Их два — отвод и рециркуляция. Первый предполагает вывод воздуха наружу в вентиляционную шахту через воздуховод, второй — очистку воздуха и возвращение его в кухню. Есть вытяжки, которые могут работать в обоих режимах или только в одном. Соответственно, выбор модели основывается на том, есть ли возможность смонтировать воздуховод наружу или нет.
Отвод — насыщенный испарениями и ароматами воздух захватывается и выводится в вентиляцию. При этом он проходит через жировой фильтр, который улавливает частички пищи, жира и копоти, не позволяя им оседать на моторе. Фильтр необходимо регулярно вынимать и мыть в теплой воде или посудомоечной машине, чтобы эффективность работы вытяжки не снижалась.
Для этого режима необходим монтаж воздуховода, что нужно учитывать при проектировании кухни, а также проверка чистоты вентиляционной шахты (на это часто не обращают внимания, а ведь воздух не будет уходить через забитую шахту). Вытяжка NR-MV M BL работает в режиме отвода, имеет свободный выход потока воздуха 700 м3/ч и подходит для кухни площадью до 15 кв. м, оснащена интуитивно понятным и надежным механическим управлением.
Рециркуляция — воздух засасывается вытяжкой, проходит через угольный фильтр, очищается от запахов и возвращается назад в кухню. Этот режим не требует монтажа воздуховода в вентиляцию. Угольный фильтр необходимо менять примерно раз в три месяца, мыть и чистить его нельзя.
Вытяжка HES 30 (C-600) Sand/AJ работает в двух режимах, так что вы можете установить ее в кухне как с возможностью монтажа воздуховода, так и без нее. Мощность модели составляет 1200м3/ч, она подходит для кухни площадью до 30 кв. м.
Удобство и уют
Итак, вы знаете стиль своей кухни и ее параметры, чтобы выбрать необходимую производительность вытяжки.
Следующий важный критерий — простота и удобство использования. Если вам приходится выполнять несколько хитрых манипуляций или каждый раз сверяться с инструкцией — это неправильная вытяжка. Интуитивность, легкость в уходе и комфорт — хорошая модель соответствует всем этим требованиям.
6. Тип управления
Этот критерий — про удобство и визуальное совершенство. Гладкие чуткие сенсорные кнопки, надежное и интуитивно понятное механическое управление, скрытые от глаз кнопки слайдерной панели, которыми удобно пользоваться даже на ощупь… Выбор зависит только от ваших предпочтений.
• Механическое — нажатие кнопки активирует соответствующую функцию.
• Электронное с LCD-дисплеем — кнопки, которые не утапливаются, а издают тихий щелчок; выбранная функция отображается на экране.
• Электронное с LED-дисплеем и подсветкой — кнопки без фиксации нажатия, которые подсвечиваются в темноте.
• Сенсорное — активация нужных функций производится касанием нужного изображения на панели управления.
• Скрытое слайдерное — ползунковый механический (кнопочный) переключатель.
• Клавишное — переключатель включения/выключения вытяжки.
В технике Pyramida продумано все, чтобы впечатления от использования оставались только положительные.
7. Освещение
Освещение фасада необходимо для того, чтобы вам было комфортно готовить. А еще с его помощью можно создавать уютную атмосферу за ужином, выключая верхний свет.
Есть три вида освещения:
• LED — самый оптимальный вариант. Свет от ламп достаточно яркий, они потребляют мало электроэнергии и служат до семи лет.
Вытяжки с таким освещением стоят дороже остальных, но цена эта оправдана преимуществами;
• галогеновое — усовершенствованные лампы накаливания, которые стали более экономичными и долговечными. Из недостатков — сильная чувствительность к перепадам напряжения и более высокая по сравнению со стоимостью обычных цена;
• лампы накаливания — самый бюджетный вариант освещения. Их свет мягкий и теплый, однако они потребляют много электроэнергии и обычно служат недолго.
8. Легкость в уходе
Кому понравится после каждого включения убивать полчаса времени на приведение вытяжки в божеский вид? Одно из двух: или вы станете реже ее включать, или перестанете заморачиваться с постоянным мытьем. Ни первое, ни второе не пойдет на пользу воздуху и общему виду кухни.
Материалы, из которых производятся, например, вытяжки Pyramida, практичны в уходе. Окрашенная сталь, закаленное стекло или нержавеющая сталь — поверхности легко чистятся, устойчивы к мелким повреждениям и долговечны.
Расходные материалы, гарантия и сервис
Вытяжка покупается один раз и на много лет, а потому стоит поинтересоваться ее гарантийным и сервисным обслуживанием — на всякий случай.
9. Фильтры
Вытяжка чистит воздух с помощью продуманной системы фильтрации. В вытяжке могут использоваться два вида фильтров: алюминиевые и угольные.
Алюминиевые предназначены для улавливания жира и продуктов горения, они хорошо очищают воздух и надежно защищают мотор вытяжки. Во всех моделях Pyramida используются пятислойные алюминиевые жироулавливающие фильтры, выполняющие свои функции максимально эффективно.
Оценить преимущества такой фильтрации можно, например, купив вытяжку TL 60 IX. Она оснащена механическим управлением, свободный выход потока воздуха составляет 700 м3/ч, а благодаря пяти слоям алюминиевых сеточек мотор прослужит долгие годы.
Угольные фильтры используются при работе вытяжки в режиме рециркуляции.
Они улавливают испарения, запахи и продукты горения, а очищенный воздух возвращается в кухню. 50 г угля в фильтре способны поглотить до 250 г загрязняющих примесей из воздуха.
Обратите внимание — их нельзя мыть, в отличие от алюминиевых, а можно только менять — примерно каждые три месяца.
Угольные фильтры Pyramida производятся из кокосовых орехов — экологически чистого и безопасного материала. Например, PFC 0101. Для большинства вытяжек понадобится один такой фильтр. Он эффективно справится с задачей очистки воздуха и всегда есть в продаже в интернет-магазинах, авторизованных точках и сервисных центрах Pyramida.
10. Комплектация
Что вы получите, распаковав коробку? Куда придется бежать, чтобы докупить необходимые для монтажа детали? Если вы выбрали Pyramida — то больше ничего не нужно. У нас все продумано и предусмотрено для моментальной установки вытяжки, в наборе есть все необходимое, включая монтажный комплект.
А с большинством вытяжек Pyramida поставляются еще и гофрированный воздуховод и антивозвратный клапан.
В комплектацию также обязательно входит инструкция по установке и эксплуатации. Как правило, наши люди открывают инструкцию тогда, когда уже что-то сломалось, — не надо так. Ознакомьтесь с нею до того, как монтировать и включать вашу новенькую вытяжку. Вы не наделаете ошибок, и вытяжка будет работать эффективно, без лишнего шума и долгие годы.
11. Официальный сервисный центр, гарантия
Вытяжка, приобретенная в Украине, должна обслуживаться здесь же. Это сократит время на устранение проблемы.
Гарантийные обязательства — подтверждение серьезного отношения компании к своим клиентам. После покупки вы не остаетесь один на один с проблемой, если вдруг она возникнет.
Техника Pyramida имеет 36 месяцев полной гарантии, что означает не только гарантийный ремонт, а и гарантийное обеспечение запчастями.
Pyramida располагает 70 сервисными центрами по всей Украине, так что вы всегда найдете авторизованную точку недалеко от места проживания. На всю продукцию Pyramida предоставляется гарантия три года — мы уверены в том, что делаем.
Здесь подразумевается 12-й пункт — «Помощь зала». Ведь кто же делает такие серьезные приобретения, не посоветовавшись с мамой/коллегами/друзьями/соседями? Технику Pyramida точно порекомендует каждая третья семья — ведь именно столько украинских кухонь уже оснащены нашими вытяжками. Присоединяйтесь и вы — и оцените преимущества украинского бренда. У нас оптимальное соотношение цены и качества, каждая модель продумана быть стильной и эффективной. Мы готовы оказывать поддержку на всех этапах: от покупки до гарантийного и постгарантийного обслуживания.
И не забывайте, вытяжка будет эффективной, если ее включать. Пользуйтесь на здоровье!
правильный монтаж воздуховода Что нужно для установки вытяжки
Чтобы в квартире или доме был свежий и чистый воздух, на кухне должна быть очень хорошая вентиляция.
С задачей своевременного удаления запахов при приготовлении пищи естественная вентиляция не справляется, потому над плитой вешают специальное устройство принудительной вентиляции — кухонную вытяжку. Как установить вытяжку правильно, как ее закрепить и вывести в систему вентиляции — об этом дальше.
Установить на кухне вытяжку — мудрое решение
Как повесить вытяжку над плитой
При правильно подобранном размере она по ширине равна или даже чуть больше ширины плиты. Чтобы правильно установить вытяжку надо ее правильно разместить и закрепить. Располагается электровытяжка точно над плитой. Высота установки зависит от типа варочной поверхности:
- Над газовой плитой минимально допустимая высота навешивания вытяжки — 75 см.
- Над электрической значение чуть меньше — 65 см минимум.
Точную высоту определяете самостоятельно — по росту хозяйки, которая будет готовить. Нижний край вытяжки должен быть чуть выше ее головы. Ниже чем минимальное расстояние вешать не стоит, а выше можно.
Но если вам необходимо повесить оборудование выше чем на 90 см от уровня плиты, необходим агрегат с повышенной мощностью — чтобы загрязненный воздух удалялся эффективно.
Крепится вытяжка в зависимости от типа. Встроенные — к специально заказанному по размерам шкафу. Навесные (плоские) и купольные (каминные) — к стене. Сами каминные вытяжки могут состоять из двух частей — агрегата с мотором и фильтрами и купола. Обе части крепятся независимо друг от друга, но так, чтобы выходы их совпадали.
Отдельно стоит сказать об островных вытяжках. Их прикрепляют к потолку. В комплекте идет система подвеса и четкие рекомендации о том, что и как делать.
Этапы монтажа
Весь процесс установки и подключения можно разбить на несколько этапов:
Если поблизости есть розетка, проблем с подключением к электричеству не предвидится. Другие этапы тоже не очень сложные, но рассмотрим их более подробно.
Крепление к стене навесной или купольной модели
Хоть внешне эти две модели отличаются, крепятся они к стене.
На задней стенке корпуса у них есть четыре отверстия — два слева, два — справа. Многие производители снабжают свои изделия монтажным шаблоном, на котором отмечены места расположения крепежа. Все что необходимо — прислонить шаблон к стене, перенести отметки. Если шаблона нет, измеряете расстояние между отверстиями, переносите на стену. Если есть помощник, можно попросить подержать на выбранной высоте, а самому сделать отметки.
Дальше все просто: при помощи дрели делаем отверстия подходящего размера, вставляем пластиковые заглушки дюбелей, затем навешиваем вытяжку на дюбель-гвозди. Естественно, проверяем горизонтальность установленного оборудования.
Этот способ хорош, если стена ровная и ничего не мешает. Часто рядом с плитой проходит газовая труба, которая не дает возможности навесить вытяжку вплотную к стене. В этом случае можно на стену прибить деревянные бруски, а к брускам уже крепить вытяжку. Это простой вариант, но не очень хороший — бруски покрываются копотью и мыть их сложно.
Второй вариант установить вытяжку за трубами — использовать шуруп-шпильку (второе название шпилька сантехническая). Они имеет резьбу для вкручивания в стену, гладкую часть, которая дает возможность отнести вытяжку на некоторое расстояние от стены и более мелкую резьбу с двумя гайками, которыми и будем фиксировать корпус. Есть эти шпильки разных размеров, выбирайте какой вам нужен, но все гайки сделаны под биту или восьмигранный ключ.
Этот вариант крепления вытяжки универсален, прост в исполнении, надежен. Также он более удобен в уходе — металл обычно нержавеющий, мыть его от отложений несложно.
Установка встроенной вытяжки в шкаф
Встраиваемая вытяжка практически полностью прячется в сделанном для нее шкафу. Крепится она точно также как описанные выше — на шурупы, только вкручиваются они в стенки. Только предварительно в расположенных выше полочках необходимо проделать отверстия под воздуховод. Это делают уже после того как вытяжка куплена, так как расположение выхода для воздуха зависит от фирмы и модели.
Если шкафчик висит, его лучше снять. В снятом шкафу установить вытяжку на место, отметить на нижней полке место расположения выхода воздуха, вырезать его. Для этого проще использовать электролобзик и пилку с мелкими зубцами. Почти не оставляет сколов пилка для ламината. При желании заделать место среза можно пластиковым С-образным мебельным профилем. Они есть жесткие и гибкие. Гибким пользоваться просто — он изгибается под любым углом, жесткие перед монтажом придется разогревать строительным феном. Эти профиля «садят» на клей, чаще всего используют «жидкие гвозди». После установки на место, убирают остатки клея (влажной чистой тряпкой), фиксируют малярным скотчем к полке. Излишки профиля обрезаем пилкой с мелким зубом, срез зачищаем наждачной бумагой с мелким зерном.
Таким же образом проделываем отверстия в других полках. Они, кстати, уже могут быть не круглыми, а прямоугольными — зависит от сечения выбранного вами воздуховода.
После этого все полки устанавливаются на место, шкаф навешивается и закрепляется.
К нему шурупами через отверстия в корпусе крепится встроенная вытяжка. Далее — процесс подключения воздуховода.
Как подключить вытяжку к электричеству
Так как потребляемая мощность кухонных вытяжек редко когда превышает 1 кВт, их можно подключать в обычные розетки. Желательно чтобы они были с заземлением. Это требование обязательно должно выполняться если вы хотите чтобы гарантийные обязательства были действительны.
Если проводка в квартире старая, можно провод заземления или зануления кинуть самостоятельно. Только не надо крепить его к трубам водопровода или отопления. Это грозит возможностью электротравмы или даже летальным исходом для вас, членов ваших сечей или соседей.
Чтобы дотянуть провод заземления, на щитке найдите шину с прикрепленными к ней проводами или трубу, к которой приварен/прикручен многожильный провод. К этим устройствам можно подключать и собственный многожильный провод (не откидывая те, которые уже есть). Чтобы он нормально работал сечение должно быть 2,5 мм, проводник — многожильный медный, желательна негорючая оболочка.
Часть вытяжек идет с вилкой на конце. С подключением таких моделей никаких вопросов — в розетку и все. Но есть модели, у которых шнур заканчивается проводами. Это не от жадности производителя, а для того чтобы потребитель сам решил, как ему лучше подключать оборудование. Если хотите — можно подключить вилку. Не подходит этот вариант — берите клеммную колодку и подключайте через нее. Еще один вариант — клеммники Wago. Их надо взять три штуки — по числу проводов. В одном клеммнике соединяют одинаковые провода от вытяжки и от щитка — фаза с фазой (тут цвета могут быть разные), ноль (голубой или синий) с нулем, заземление (желто-зеленое) с заземлением.
Воздуховод для кухонной вытяжки
Один из этапов установки вытяжки — выбор и монтаж воздуховодов. Из кухни отводится воздух комнатной температуры, потому особых требований к воздуховодам нет и использовать можно любые. Обычно используют три типа:
Есть еще разница между пластиковым и гофрированным воздуховодом — цена.
Полимерные стоят дороже. Несмотря на это, если есть у вас возможность установить вытяжку с использованием ПВХ, ставьте их. При равном сечении они обеспечивают более эффективный отвод воздуха, а также меньше шумят.
Сечение труб для воздуховода определяется размером выходного отверстия на вытяжке. В случае с прямоугольными трубами используют переходник.
Размеры воздуховодов для вытяжек
Круглые воздуховоды есть трех размеров: 100 мм, 125 мм и 150 мм. Это диаметр пластиковых труб и гофрированных рукавов. Сечений плоских воздуховодов больше и они представлены в таблице.
Как выбрать размер? В случае с круглыми трубами их диаметр должен совпадать с диаметром выходного отверстия вытяжки. Очень нежелательно на выход ставить переходник, а затем использовать воздуховод меньшего диаметра — это снизит скорость очищения воздуха. И если даже вытяжка будет очень мощной, она тогда с очищением воздуха не справится.
С выбором сечения прямоугольного воздуховода — площадь его сечения не должна быть меньше площади сечения выходного патрубка.
А подключение происходит через подходящий переходник.
Как крепить гофру к вытяжке и вентиляции
Если вы решили установить вытяжку и использовать для воздуховода алюминиевую гофру, вам надо будет подумать о том, как ее крепить к корпусу и к вентиляции. Для этого понадобятся хомуты подходящего размера. Они могут быть металлическими или пластиковыми.
Для подключения вытяжки к системе вентиляции также потребуется специальная вентиляционная решетка. Она в верхней части имеет отверстие для подключения трубы воздуховода. В нижней части есть отверстия для удаления из кухни воздуха при помощи естественной циркуляции в то время, когда вытяжка не работает.
Для крепления гофры подходит решетка с выступом — вокруг отверстия имеется бортик в несколько сантиметров, на который надевается гофра, после чего она крепится при помощи хомута подходящего размера.
По тому же принципу крепится гофрированный воздуховод к вытяжке. На ней есть выступ, на который надевается гофра.
Стягивается соединение при помощи хомута.
Как крепить воздуховод к стенам
Для пластиковых воздуховодов есть специальные крепления в виде защелок. Они сначала монтируются на стену с использованием дюбелей. Шаг установки зависит от кривизны трассы, но в среднем достаточно 1 крепление на 50-60 см. В эти защелки во время монтажа с небольшим усилием вставляются трубы.
Если воздуховод необходимо закрепить на потолке, можно использовать те же крепления. Но если необходимо выдержать какое-то определенное расстояние от потолка, такой вид монтажа не подойдет. В таких случаях берут перфорированные подвесы для гипсокартона, крепят их к потолку, затем к ним небольшими шурупами ПВХ воздуховод для вытяжки.
Гофрированные воздуховоды к стенам крепятся при помощи хомутов или пластиковых затяжек большого размера. К потолку при необходимости они тоже монтируются при помощи перфорированных алюминиевых подвесов.
Куда и как выводить воздуховод
Чаще всего воздуховод от вытяжки на кухне подсоединяют в вентиляционное отверстие, через которое идет естественная вентиляция (за счет тяги).
Это неправильно, так как при этом большая часть решетки оказывается закрытой воздуховодом, а через оставшиеся доступными отверстия обмен воздуха будет явно недостаточен.
Правильно подключать воздуховод в отдельный вентканал. В этом случае на отверстие устанавливается такая же решетка, как на фото выше.
Если отдельного вентканала нет, но рядом расположена наружная стена, можно вывести трубу на улицу, поставив снаружи решетку. Это два способа иметь нормальную вентиляцию и обеспечить нормальную работоспособность вытяжке.
Как вывести на улицу
Чтобы установить вытяжку и вывести воздуховод в стену, необходимо проделать в ней отверстие. И это единственная сложность. Далее в это отверстие вставляется воздуховод, заделывается раствором. Снаружи отверстие закрывается решеткой — чтобы не попадал мусор, не селились птицы и мелкие животные.
Чтобы в помещение не задувал воздух с улицы, устанавливают обратный клапан (на рисунке выше он обозначен косой линией).
Его, кстати желательно ставить и при подключении воздуховода к системе вентиляции — чтобы запахи из труб не попадали в помещение.
Обратный или антивозвратный воздушный клапан представляет собой легкую пластиковую или металлическую пластину. Она подвижно крепится в двух местах к трубе — вверху и внизу, лепестки подпираются несильной пружиной. Пока вытяжка не работает, клапан перекрывает доступ воздуху снаружи. Когда вытяжка включается, поток воздуха отгибает пластину вперед, отжимая пружину. Как только вытяжка выключена, пластина при помощи пружин возвращается на место. Если установить вытяжку без этого клапана, зимой в кухне может быть слишком холодно — наружный воздух будет без проблем попадать в помещение.
Чтобы вытяжка не мешала естественной вентиляции в кухне
При помощи тройника и обратного клапана можно, кстати, установить вытяжку так, чтобы она не мешала естественной вентиляции в кухне. Понадобится специальная вентиляционная решетка для подключения вытяжек, обратный клапан и тройник.
К вентрешетке крепится тройник, к его нижнему входу подключается воздухвод от вытяжки, а на свободный выход ставится обратный клапан, то только так, чтобы лепестки запирались при прохождении воздуха из трубы (на фото ниже).
Как работает такая система? Когда вытяжка выключена, лепестки обратного клапана отогнуты, воздух из кухни в вентканал попадает через решетку и открытый выход тройника. Когда вытяжка включается, поток воздуха от нее разворачивает пластину клапана, и воздух идет в систему вентиляции. При отключении вытяжки, пружины снова открывают доступ воздуху через тройник.
Внешне такая системы выглядит не очень привлекательно и ее придется каким-то образом маскировать. Но это единственный способ подключить вытяжку к единственному существующему выходу вентиляции и не снизить воздухообмен.
Способ установки этого устройства будет зависеть от его режима работы, которых всего насчитывается 2:
Режим отвода
Режим рециркуляции
Установка вытяжки, которая работает в вытяжном режиме, включает в себя вывод воздуховода в систему вентиляции.
Для этого очень важно правильно выбрать диаметр воздуховода — он не должен превышать допустимых параметров в 120-150 мм.
Совет! При установке воздуховода его не нужно ни сгибать, ни удлинять, так как все это значительно увеличивает потерю мощности: каждый поворот снижает мощность на целых 10 %.
Выбирая воздуховод, нужно отдавать предпочтение тем, которые имеют гладкую поверхность, потому как гофрированные жесткие трубы слишком громко «звучат» во время работы оборудования.
Установка вытяжки с угольным фильтром не требует вывода в вентиляцию, потому как весь воздух, который в нее попадает, очищается и вновь возвращается в помещение. Монтаж такой вытяжки довольно прост, однако периодически придется менять фильтры.
Не менее важно и то, как именно будет крепиться вытяжка, это зависит от ее вида.
Виды вытяжек
Вытяжки бывают:
Встраиваемые — закрепляются в специальном шкафу без дна
Островные — закрепляются прямо на потолке в любом месте комнаты
Какие инструменты понадобятся
Для установки кухонной вытяжки нужны будут такие инструменты и материалы:
Гофр и пара хомутов для его крепления
Решетка для вентканала
Перфоратор
Шуруповерт
Ножовка для резки металла
Строительный уровень
Отвертка
Рулетка (для разметки).
Монтаж вытяжки начинают, как правило, с самого сложного — подключение вытяжки к вентиляционной шахте. И лучше всего будет не пробивать еще одно отверстие, увеличивая окно вентиляционной шахты, а установить дополнительный короб со специальным клапаном, который будет препятствовать возвращению воздуха обратно в помещение.
Вот его схематический вид:
Как все это работает? Если клапан закрыт (клапан — красная черта) — воздух просто выходит через отверстие вентиляции, а если вытяжка запускается, и начинает работать вентилятор, то он изменяет свое положение и закрывает одно из окон, а вентиляция в этом случае осуществляется при помощи самой вытяжки.
Основная задача всей этой системы — предотвращение возникновения обратной тяги и возможность осуществления естественной вентиляции, если вытяжка будет отключена.
Для сооружения механизма понадобится пружина и алюминиевый или пластиковый лист для сооружения клапана.
Из всех возможных видов воздуховодов лучше выбирать те, что изготовлены из пластика, либо же из алюминия.
Пластиковые трубы очень легкие и не создают шума при работе вытяжки, к тому же, прятать их не нужно, они отлично вписываются в дизайн помещения и не уродуют его.
Алюминиевые гофрированные трубы тоже не шумят во время работы, но имеют не очень привлекательный внешний вид, поэтому многие ломают голову над тем, как спрятать гофр от вытяжки. Одним из лучших способов считается его устройство в гипсокартонный потолок.
Прежде чем приступить к монтажу
Перед монтажом нужно выяснить все моменты, касающиеся подключения вытяжки к электричеству. При этом чрезвычайно важно соблюдать все нормы электробезопасности, ведь на вытяжку в процессе эксплуатации будут постоянно попадать капли жира, влага и все такое прочее, поэтому его корпус и требует обязательного заземления для отвода напряжения.
Для подключения вытяжки нужно 3 провода: фаза, ноль и земля. Нужно обязательно обеспечить оборудование заземлением. Сделать это можно при помощи заземляющего контура (если таковой имеется), просто подключив провод к соответствующей клемме.![]()
Но что делать, если заземления в квартире нет? В этом случае придется подключить провод к глухой нейтрали. Для этого нужно открыть электрощиток со счетчиками и найти там трубу со всеми проводами или же специальную шину, как на картинке:
На ней нужно найти штырь, на котором уже находятся нулевые провода. Нужно будет накинуть поверх них свой провод и затянуть шайбу. После этого провод проводится на кухню, а сама вытяжка подключается через автомат-разделитель.
Прежде чем приступить к монтажу оборудования, необходимо заняться изготовлением короба-хлопушки. Он изготавливается в соответствии со схемой (рисунок выше), или же можно пойти более простым путем и приобрести антивозвратный клапан. Вся конструкция будет устанавливаться перед вентиляционным отверстием в стене.
После этого можно подготавливать шкаф. Для этого нужно разметить его нижнюю стенку и в соответствии с проставленными отметками просверлить там отверстие под вытяжку. Если в шкафу есть полки, то в них также нужно будет просверлить круглые или квадратные отверстия под воздуховод.
Верхняя стенка шкафчика должна быть просверлена в форме квадрата и с некоторым запасом (3-5 мм) — для короба-хлопушки.
Когда шкаф будет готов, можно приступать к подключению воздуховода. Для этого его нужно протянуть через все просверленные отверстия, обрезать трубу и загнуть ее края наружу. После этого шкафчик можно повесть на стену.
Важно! Все стыки воздуховода нужно обработать герметиком, чтобы впоследствии вытяжка не потеряла своей мощности.
Протянутый в шкафу воздуховод соединяется с вентканалом через антивозвратный короб. Хлопушка крепится на шкаф на силикон.
После того как основные элементы будут подключены, можно закреплять сам корпус вытяжки в шкафу. Прикручивается он на саморезы или дюбели. Гофр крепится к нему при помощи хомута.
Если же нужно закрепить не гофр, а пластиковый воздуховод, то следует просто правильно соединить все комплектующие:
Высота установки вытяжки над плитой
Очень важным фактором, который нужно учесть перед монтажом вытяжки, является ее высота над варочной поверхностью плиты.
Этот параметр будет зависеть от типа самой плитки:
Если нужно установить воздухоочистительное оборудование над электрической плиткой, то расстояние между ними не должно быть менее 70 см.
Для газовой плиты этот параметр составляет 80 см.
Соблюдение этих параметров позволяет обеспечить эффективную очистку воздуха в кухне. Если же высота между плитой и вытяжкой будет менее 70-80 см, то нагретый воздух, исходящий от варочной поверхности, может повлиять на работоспособность прибора и повредить его важные элементы.
В случае монтажа устройства не в шкаф, а прямо на стену, можно воспользоваться встроенными креплениями или же соорудить П-образную раму из уголков. Такая рама будет служить надежной опорой для корпуса вытяжки.
В некоторых случаях обычные дюбели не подходят для закрепления, это является довольно частой проблемой для тех, у кого трубы газовой плиты мешают нормальному креплению. Для решения проблемы нужно воспользоваться длинными саморезами-шпильками.
На одном из концов они имеют резьбу с гайкой к которой можно прикрутить корпус устройства.
Как подключить вытяжку к электросети
Окончательный этап — это подключение вытяжки к электросети. Он осуществляется двумя способами:
Через розетку
Через предохраняющий автомат
Очень важно помнить про заземление, о котором уже было указано выше статье. Благодаря ему можно убрать напряжение с корпуса и вентилятора вытяжки.
Как только все будет готово, можно оформить вытяжку в декоративный колпак и защитные воздуховоды и смело пользоваться всеми преимуществами этого оборудования.
Устройство кухонной вытяжки — это достаточно простая процедура, особенно при соблюдении всех правил электробезопасности и наличии необходимых инструментов и материалов. И единственное, что потом потребуется, так это 2 раза в год очищать оборудование от жира и копоти для предотвращения возгорания.
Установка вытяжки над газовой плитой — видео
Видео, которое поможет подробнее разобраться в установке вытяжки и подборе нужных элементов для монтажа:
Даже приготовление пищи в небольшом объеме сопровождается малоприятными дополнениями в виде надоедливых запахов, копоти и жира.
Устранить эти проблемы просто: современные вытяжные устройство быстро и качественно очищают воздух.
Современная кухонная вытяжка поймает все неприятные запахи
Чтобы установить вытяжной аппарат, прибегают к помощи профессионалов. Это быстро, надежно и просто. Но тоже имеет полное право на жизнь. К тому же руками не займет много времени и сэкономит средства. Хозяину не нужно будет переживать за качество сделанной работы, так как для себя он постарается сделать все на отлично. Установка своими руками – еще одна возможность углубить свои познания в этой отрасли.
Типы вытяжек
Тип вытяжного устройства подбирается в зависимости от технических условий и наличия выхода в вентиляционную шахту. Наиболее популярными остаются фильтрующие, вытяжные и комбинированные модели.
Фильтрующие аппараты работают по принципу рециркуляции. Отработанная воздушная масса втягивается внутрь конструкции, проходит через систему фильтров и возвращается назад в помещение уже очищенной от запахов и жировых примесей.
Установить их проще простого, так как эти устройства не требуют наличия вентиляционного отверстия.
Вытяжные модели – это аппараты проточного типа. Металлический отработанную воздушную массу и выбрасывает ее на улицу через вентиляционный канал. Монтаж их труднее, так как необходимо выводить на улицу воздуховод.
В зависимости от конструктивных особенностей вытяжные устройства разделяются на 4 вида:
Каждый вид имеет свой тип монтажа. Легче всех установить настенные устройства, тяжелее – потолочные.
Правильное расположение
Размеры вытяжек рассчитывают в зависимости от габаритов плиты или варочной панели. Необходимо помнить, что должна быть на 10-15 см шире варочной поверхности. Если аппарат имеет меньшую ширину, это негативно сказывается на качестве вентиляции. На кухонном гарнитуре постоянно скапливается жир и грязь, а в воздухе чувствуется запах пищи.
Самостоятельная установка вытяжки не требует особых профессиональных навыков
Высота крепления устройства варьируется в пределах 65-80 см от плиты.
От этой величины напрямую зависит всасывание жировых примесей и пара. Высота менее указанных значения не используется, так как существует возможность возгорания жиров, которые в продолжение длительного времени осели на фильтрах. Да и работать на плите с низко подвешенной вытяжкой неудобно. Устройство не рекомендуют устанавливать выше 80 см, так как в таком случае львиная доля побочных продуктов сгорания пройдет мимо.
Аппарат устанавливают неподалеку от розетки с заземлением. Поэтому уже во побеспокоиться о расположении электрической проводки и розетки. Шнур не должен висеть над плитой и конфорками, иначе он или перегреется, или перегорит. Провод прячут в специальном кабель-канале, который крепится к стене.
Чтобы аппарат работал с максимальным КПД, в доме обеспечивают хорошую приточную вентиляцию. Для этого устанавливают приборы принудительной вентиляции или используют функцию проветривания на окнах из металлопластика. В крайнем случае открывают форточку (только не в холодное время года).
Монтаж
Монтаж бытовой вытяжки на кухне в квартире не представляет особых сложностей. Устройство крепят непосредственно к стене или монтируют в составе кухонного гарнитура. Приобретая пристенную вытяжку для кухни, необходимо проконсультироваться у продавца по поводу креплений, которые выдержали бы массу аппарата. Последовательность действий при монтаже пристенной кухонной вытяжки:
Сборка прибора требует большой внимательности и осторожности
- Точно измерить расстояние между нижним краем устройства и отверстиями для креплений. Разметку нанести на стену и проверить уровнем.
- Если на кухне уже стоит плита, ее прикрыть пленкой или бумагой, чтобы защитить от пыли и грязи.
- Просверлить углубления для дюбелей.
- Вбить дюбеля, закрутить саморезы, регулируя их длину.
- Зафиксировать воздуховод хомутом.
- Вентиляционную трубу вывести в шахту или на улицу.
- Прикрыть воздуховод кожухом (при его наличии).
- Если есть , установить его.

- Подключить прибор к питанию.
- Включить и проверить функционирование устройства.
Монтаж встроенной вытяжки в шкаф немного отличается:
- На задней или боковой стенке разметить отверстия для выхода вытяжной трубы и кабеля.
- Вырезать выход для воздуховода и просверлить отверстие для электропровода.
- Зафиксировать воздуховод.
- Вывести наружу трубу и кабель.
- Закрепить шкафчик.
Важно правильно подключить вытяжное устройство к электросети. Меры соблюдение электрической безопасности обязательны к выполнению. Если случайно допустить ошибку, можно получить удар током.
Если воздуховод нужно укоротить, не рекомендуется обрезать ту часть, которая вставляется в вентиляционный канал. Оптимальное решение – обрезать промежуточные секции. В месте, где труба входит в вентиляционную сеть, монтажной пеной заполняет все щели и аккуратно штукатурят. Это улучшает качество вентиляции и уменьшает побочные подсосы воздуха.
Если воздуховод выходит прямиком на улицу, то с наружное стороны вентиляционного отверстия устанавливают обратный клапан. Он не позволяет воздуху с улицы попадать в кухню.
Установка вытяжной трубы
Подключение кухонной вытяжки к вентканалу осуществляется с помощью труб из гофры или пластика. Требования, предъявляемые к воздуховоду, довольно важные:
- Оптимальная длина на кухне – не более 3 м. Если воздуховод имеет большую длину, с каждым метром эффективность работы устройства снижается на 10%.
- Минимальное количество поворотных колен, переходников и изгибов. Чем больше колен, тем хуже вентиляция. Сопротивление системы резко увеличивается, и отработанный воздух с трудом выходит наружу.
- Изгибы и повороты – исключительно под тупым углом. Угол в 90 градусов снижает КПД на 10%. Воздуховод должен плавно переходить из одной стены на другую.
- Гладкая внутренняя поверхность. В таком случае вентиляция будет эффективной, так как сопротивление воздуха снизится.
Лучший вариант – . Воздуховод из гофры имеет ребристость, что создает дополнительные препятствия для выходящего воздуха.
Процесс установки вытяжной трубы — внимательно прочтите инструкцию
Практически все модели аппаратов подключаются на круглый воздуховод из гофры или пластика. Прямоугольные трубы лучше смотрятся, так как более гармонично вписываются в пространство между шкафчиком и потолком. Диаметр может быть разным, но площадь поперечного сечения должна быть не менее 0,1 м 2 . Все соединения герметично закрывают, чтобы исключить возможное попадание отработанного воздуха назад в кухню.
Пластиковые воздуховоды прочные, легкие и не создают дополнительного шума при работе. Гофрированные изделия тоже имеют немало преимуществ: они гибкие, легкие, не вибрируют и не шумят. Но в плане эстетичности они уступают пластиковым собратьям.
Воздуховод прячут в свободное внутреннее пространство стен, мебели или потолка. Удобны в таком случае двухуровневые потолки: трубу можно с легкостью спрятать над нижним уровнем.
Если такие варианты не подходят, применяют декоративные короба, подходящие по стилю и цветовому решению к кухонному гарнитуру или стенам. Своими руками можно сделать короб из гипсокартона на кухне для вытяжки. В продаже есть и короба для вытяжки на кухне из нержавейки.
ПОСМОТРЕТЬ ВИДЕО
Инструкция по установке вытяжного устройства прилагается к каждой модели. Вытяжка на кухню горение имеет подробную инструкцию с рисунками по монтажу аппарата. Поэтому на возникшие вопросы можно найти исчерпывающий ответ от производителя.
Если вы хотите обеспечить максимально чистый воздух на кухне без испарений, жира и запахов, то вам потребуется качественная вытяжка. Выбирать это устройство следует по дизайну и производительности, но не меньшее значение имеет и установка кухонной вытяжки. Кстати, сделать все своими руками не представляет особой сложности.
Особенности монтажа кухонных вытяжек
Установка вытяжки на кухне производится по разным принципам в зависимости от типа конструкции:
- Если техника может работать в режимах рециркуляции и отвода, то монтаж подразумевает вывод воздуховода в наружную вентиляционную систему.
Здесь следует правильно рассчитать диаметр воздуховода (он должен находиться в пределах 120-150 мм). Воздуховод не сужают, по возможности не сгибают и не удлиняют – это поможет минимизировать потери мощности. Устанавливается квадратный или круглый воздуховод – но желательно гладкий, а не гофрированный, иначе существенно усилится шумовой эффект от работающей на кухне вытяжки.
- Существуют вытяжки, работающие только в режиме рециркуляции. Их основной элемент – угольный фильтр. Такое устройство не подключают к вентиляционной шахте. Воздух, попадающий внутрь конструкции, при прохождении через угольный фильтр очищается, после чего снова «выбрасывается» в помещение. Угольный фильтр приобретается отдельно. Правильно подключить устройство этого типа легко, хотя и производительность его будет ниже, чем у универсальной конструкции.
Способы, позволяющие правильно установить вытяжку, будут различаться, в зависимости от того, устанавливают или навесную.
Инструменты и материалы, необходимые для работы
Установка кухонной вытяжки своими руками потребует специальных комплектующих и инструментов.
Некоторые из них будут в комплекте с приобретаемой техникой, а некоторые (как, например, крепление или угольный фильтр) придется купить отдельно.
Для установки потребуются:
- Гофра, позволяющая отводить воздух с загрязнениями непосредственно в вентканал;
- Решетка для вентиляционной шахты – чтобы место, где производилась установка гофры, выглядело эстетично;
- Крепление (фиксаторы) гофры – 2 хомута.
Также монтаж вытяжки на кухне потребует наличия следующих инструментов:
- Шуруповерт или дрель, перфоратор;
- Отвертка;
- Рулетка и карандаш для разметки;
- Уровень;
- Ножовка по металлу для гофры.
Выполняем монтаж вытяжки – этапы проведения работ
Прежде чем начать монтаж, необходимо рассчитать, на какой высоте вешать вытяжку. Собственно процесс установки своими руками подразумевает несколько этапов:
- Закрепить крепление вытяжки к стене.
- Подключить устройство к системе воздуховодов (или поместить внутрь угольный фильтр).

- Сделать электроподключение.
Основных нюансов крепления вытяжки к стене два:
- Устройство должно монтироваться с максимальной надежностью;
- Следует правильно определить расстояние от плиты до вытяжки.
Какая должна быть высота установки кухонной вытяжки? Это зависит и от ее типа, и от типа варочной поверхности:
- Если модель устанавливается для электрической плиты, то расстояние, на которое нужно вешать устройство, составляет минимум 70 см;
- Для кухонной вытяжки с минимальная высота составляет 80 см.
Некоторые мастера, предпочитающие сделать монтаж своими руками, утверждают, что и для газовой, и для электрической плиты оптимальное расстояние – именно 700 мм. Действительно, такая высота считается достаточной для того, чтобы вытяжка на кухне (даже рециркуляционная, в комплект которой входит угольный фильтр), могла эффективно очищать воздух в рабочей зоне.
Однако стоит понимать, что от газовой плиты будет подниматься более нагретый воздух – может не хватить мощности изделия, повредиться фильтр или другие элементы конструкции.
Получается, что сохраняя минимально допустимое расстояние, вы рискуете работоспособностью прибора, а если примете решение крепить прибор на увеличенной высоте от плиты, можете существенно потерять в мощности.
Дальнейшие работы по установке вытяжки на кухне своими руками заключаются в следующем:
- Кухонную вытяжку нужно повесить к стене. Здесь очень важно правильно рассчитать высоту над плитой и выполнить разметку. Монтировать устройство нужно по особой оси, соответствующей центру варочной поверхности. Лучше, если выбранная вытяжка обладает эксцентриковым крепежом – он позволяет скорректировать нюансы расположения техники над плитой в пределах 5 мм.
- Нужно установить вытяжку и подключить ее к системе воздуховодов. Положение устройства следует рассчитать таким образом, чтобы длина коробов была минимальной. Монтаж воздуховода осуществляется к вентканалу, предназначенному для удаления воздуха из помещения. Установить воздуховод в вентканал можно с помощью специальной гильзы.
Получившееся соединение сжимается хомутами и смазывается силиконом для герметичности. - Решить вопрос, как установить вытяжку на кухне, невозможно без электроподключения. Мощность устройства, как правило, невелика – это значит, что не нужен специальный расчет сечения проводов или монтаж отдельного защитного автомата. Желательно предусмотреть провод на кухне сразу же и спрятать его в стену. Если же этого не было сделано, то придется вешать розетку снаружи и подключить провод, спрятав его в наружный вентканал.
Особенности монтажа встраиваемой вытяжки
Установка встраиваемой вытяжки своими руками вполне возможна, хотя и имеет свои особенности. Здесь так же нужно правильно рассчитать высоту над плитой, но основной нюанс заключается в том, как крепится устройство.
Встраиваемую модель на кухне не нужно вешать к стене – она фиксируется в кухонной мебели, в шкафчике со специально выполненной скрытой полостью. Кстати, таким же образом можно подключить и рециркуляционные вытяжки – их мощности будет вполне достаточно для небольших кухонных помещений.
После того, как техника полностью подключена, проверяется ее работоспособность. Завершающий этап – установка защитного кожуха, скрывающего воздуховоды. После этого можно наслаждаться чистым воздухом.
Вытяжки— несколько последних мыслей
При выборе вытяжки важно выбрать правильный размер. CFM … или кубический фут воздуха, перемещаемого в минуту … используется для измерения размера вытяжки. При выборе мощности вытяжки/вентилятора необходимо учитывать тип печи, размер кухни и воздуховоды. Давайте посмотрим, как определить требования CFM
. Электрическая плита / плита — Один простой расчет требует 100 кубических футов в минуту на каждый погонный фут ширины печи.Например, с электрической плитой шириной 30 дюймов ваша вытяжка должна быть рассчитана на 250 кубических футов в минуту или выше. Это рассчитывается путем умножения ширины печи (30 дюймов равно 2,5 погонных футов) на 100 кубических футов в минуту на погонный фут.
Газовая варочная панель — По сравнению с электрической плитой газовая варочная панель выделяет значительно больше тепла. Следовательно, требуется большая вытяжка. Первым шагом в определении необходимого CFM является суммирование BTU для всех горелок. Как правило, каждая газовая горелка имеет мощность от 5 000 до 15 000 БТЕ.Выходная мощность газовой варочной панели с четырьмя конфорками обычно составляет около 40 000 БТЕ. Разделите общее количество БТЕ варочной панели на 100 для требования CFM. Для стандартной газовой варочной панели потребуется вытяжка / воздуходувка мощностью 400 кубических футов в минуту (40 000 ÷ 100).
Размер кухни — Вам также необходимо учитывать размер вашей кухни. Чем больше комната, тем больше вытяжка. Отраслевые нормы призывают переворачивать воздух на кухне 15 раз в час. Это раз в четыре минуты.Для определения CFM возьмите объем помещения (ширина х длина х высота), умножьте на 15 обменов в час, а затем разделите на 60 минут в час.
Для комнаты размером 12 x 16 футов с потолками высотой 9 футов необходимый кубический фут в минуту составляет 432 (12 x 16 x 9 x 15 ÷ 60 = 432).
Воздуховод — По мере прохождения воздуха по воздуховоду и вокруг углов его продвижение затруднено. Это необходимо учитывать при выборе размера вентилятора вытяжки. Рекомендации призывают добавлять 1 CFM на каждый фут воздуховода и 25 CFM на каждый оборот.Если вытяжка вентилируется через крышку крыши, необходимо добавить дополнительные 40 кубических футов в минуту.
После расчета CFM с использованием этих различных методологий определите размер вытяжки на основе максимального требования CFM, а затем добавьте для воздуховодов. Это приведет к правильному размеру вытяжки вашего дома.
Если у вас есть дополнительные вопросы о реконструкции или вытяжках, зайдите в наш демонстрационный зал в Кармеле, штат Индиана, и поговорите с одним из наших дизайнеров. Они будут рады помочь.
| Premier Magic Lung® Professional/Standard для настенного монтажа | Ah22 — Premier Magic Lung® Professional/Standard для настенного монтажа Модель серии «А» отличается хромированными вставками и скошенными сторонами, что украсит любую кухню в «ретро-стиле». МОДЕЛИ Ah22 |
| ARS для настенного монтажа без воздуховодов | CWEAH6-K — ARS для настенного монтажа без воздуховодов Используя запатентованную 4-фазную технологию, серия Vent-A-Hood ARS идеально подходит для приготовления пищи в домашних условиях, где вентиляция невозможна. МОДЕЛИ CWEAH6-K |
| Настенное крепление Premuim Power Lung (V-Line) | CWEH6-K — Premuim Power Lung (V-Line) для настенного монтажа Компактный двухслойный визуальный эффект — идеальное дополнение к любой современной кухне.Включает в себя систему обдува Power Lung серии K, которая идеально подходит для приготовления легких и умеренных блюд (класс шума составляет 7,4 сона на высокой скорости). МОДЕЛИ CWEH6-K |
| Premier Magic Lung® Contemporary для настенного монтажа | CWEH9 — Premier Magic Lung® Contemporary для настенного монтажа Толстый прямоугольник. Нажмите на модели для получения списка наших базовых номеров моделей для стандартных размеров; просто выберите нужную модель, а затем укажите отделку (окрашенная или нержавеющая сталь). Недоступно из настоящей латуни, настоящей меди или чеканной меди. МОДЕЛИ CWEH9 |
| Premier Magic Lung® Professional/Standard для настенного монтажа | CWH — Premier Magic Lung® Professional/Standard для настенного монтажа Отдельный капюшон может иметь срезанные или закругленные углы.Добавьте специальные смещения, чтобы создать губу. Дополнительные прямоугольные, квадратные или круглые крышки воздуховодов являются разумным дополнением. Нажмите на модели для получения списка наших базовых номеров моделей для стандартных размеров; просто выберите нужную модель, а затем укажите отделку (окрашенная, нержавеющая сталь, настоящая латунь, настоящая медь или чеканная медь). МОДЕЛИ CWH |
| Premier Magic Lung® Contemporary для настенного монтажа | CWLH9 — Premier Magic Lung® Contemporary для настенного монтажа Двойной прямоугольник с камбузным поручнем. Нажмите на модели для получения списка наших базовых номеров моделей для стандартных размеров; просто выберите нужную модель, а затем укажите отделку (окрашенная или нержавеющая сталь).Недоступно из настоящей латуни, настоящей меди или чеканной меди. Рекомендуемая высота установки 27 дюймов над варочной поверхностью. Показаны с соответствующими крышками воздуховодов для настенного монтажа (продаются отдельно), доступны в стандартных размерах для потолков высотой 7, 8 и 9 футов или в нестандартных размерах. МОДЕЛИ CWLH9 |
| Premier Magic Lung® Contemporary для настенного монтажа | CWSh4 — Premier Magic Lung® Contemporary для настенного монтажа Тонкий прямоугольник.Доступен в версии из нержавеющей стали. Рекомендуемая высота установки 24 дюйма над варочной поверхностью. Показаны с соответствующими крышками воздуховодов для настенного монтажа (продаются отдельно), доступны в стандартных размерах для потолков высотой 7 и 8 футов. Все продукты Vent-A-Hood подходят для использования во влажных помещениях ( наружные применения, такие как крытое патио) при установке в ответвленной цепи с защитой GFCI МОДЕЛИ ЦВШ4 |
| Premier Magic Lung® Contemporary для настенного монтажа | CWUH9 — Premier Magic Lung® Contemporary для настенного монтажа Двойной прямоугольник со смещенным верхним слоем. МОДЕЛИ CWUH9 |
| | CXh28-M — M Line для настенного монтажа Тонкие полосы из нержавеющей стали и округлая форма этой европейской настенной вытяжки создают уникальный дизайн. МОДЕЛИ CXh28-M |
| Premier Magic Lung® Professional/Standard для настенного монтажа | CXh40 — Premier Magic Lung® Professional/Standard для настенного монтажа Европейский дизайн этой закругленной настенной вытяжки подойдет для любой кухни. К некоторым моделям могут быть добавлены тепловые лампы. Нажмите на модели для получения списка наших базовых номеров моделей для стандартных размеров; просто выберите нужную модель, а затем укажите отделку (окрашенная, нержавеющая сталь, настоящая латунь, настоящая медь или чеканная медь). МОДЕЛИ CXh40 |
| Premier Magic Lung® Professional/Standard для настенного монтажа | DAh28 — Premier Magic Lung® Professional/Standard для настенного монтажа Классический дизайн настенного крепления подходит для любой кухни.Выберите вертикальные концы, которые идеально подходят для установки между шкафами, или вогнутые концы для французского деревенского стиля. К некоторым моделям могут быть добавлены тепловые лампы. Нажмите на модели для получения списка наших базовых номеров моделей для стандартных размеров; просто выберите нужную модель, а затем укажите отделку (окрашенная, нержавеющая сталь, настоящая латунь, настоящая медь или чеканная медь). МОДЕЛИ DAH28 |
| Premier Magic Lung® Professional/Standard для настенного монтажа | DAh40 — Premier Magic Lung® Professional/Standard для настенного монтажа Вогнутая форма этого классического настенного крепления прекрасно смотрится на любой кухне.Нажмите на модели для получения списка наших базовых номеров моделей для стандартных размеров; просто выберите нужную модель, а затем укажите отделку (окрашенная, нержавеющая сталь, настоящая латунь, настоящая медь или чеканная медь). МОДЕЛИ DAH40 |
| Premier Magic Lung® Euro Style для настенного монтажа | EPh28 — Premier Magic Lung® Euro Style для настенного монтажа Эта серия Euroline Pro с квадратной кромкой специально разработана для покрытия легкого бытового кухонного оборудования «коммерческого типа».Чтобы заказать глубину 27 дюймов, добавьте «X» после «EP» в номере модели. Серия Euroline Pro с изумрудной кромкой также доступна с верхней частью шириной 26 дюймов и глубиной 14 дюймов, чтобы обеспечить более высокие требования к CFM. недоступны для этой модели.Нажмите на модели, чтобы получить список наших базовых номеров моделей для стандартных размеров; просто выберите нужную модель, а затем укажите отделку (окрашенная, нержавеющая сталь, настоящая латунь, настоящая медь или кованая медь). МОДЕЛИ ЭФ28 |
| | ЭФ28-М — Линия M для настенного монтажа Эта серия M-Line Euro Pro с квадратной кромкой специально разработана для покрытия легкого бытового кухонного оборудования «коммерческого типа».Нажмите на модели для получения списка наших базовых номеров моделей для стандартных размеров. Вытяжка доступна из нержавеющей стали. Рекомендуемая высота установки составляет 30 дюймов над варочной поверхностью. Соответствующая крышка воздуховода для настенного монтажа (продается отдельно) доступна в стандартных размерах для потолков высотой 8, 9 и 10 футов. МОДЕЛИ ЭФ28-М |
| | EPh28-M-X32 — M Line для настенного монтажа Эта серия M-Line Euro Pro с квадратной кромкой специально разработана для покрытия легкого бытового кухонного оборудования «коммерческого типа».Эта вытяжка с глубиной выступа 32 дюйма идеально подходит для крытого гриля на открытом воздухе. Нажмите на модели, чтобы увидеть список наших базовых номеров моделей для стандартных размеров. Вытяжка доступна из нержавеющей стали. Рекомендуемая высота установки составляет 30 дюймов над варочной поверхностью. . Соответствующая крышка воздуховода для настенного монтажа (продается отдельно) доступна в стандартных размерах для потолков высотой 8 футов, 9 футов и 10 футов. ПОЖАЛУЙСТА, ОБРАТИТЕ ВНИМАНИЕ, ДОСТУПНЫ ДВА ВАРИАНТА ВОЗДУХОДУВКИ. M600 (630 куб. футов/мин) И M1200 (1035 куб. футов/мин). МОДЕЛИ ЭФ28-М-Х32 |
| Premier Magic Lung® Euro Style для настенного монтажа | EPTh28 — Premier Magic Lung® Euro Style для настенного монтажа Этот Euroline Pro с квадратной кромкой специально разработан для покрытия легкого бытового кухонного оборудования «коммерческого типа». МОДЕЛИ EPTh28 |
| Настенное крепление Premuim Power Lung (V-Line) | GTH-K — Premuim Power Lung (V-Line) для настенного монтажа Компактная стеклянная передняя панель с современным дизайном. МОДЕЛИ GTH-K |
| Серия Premier Magic Lung® Designer для настенного монтажа | JCH/A1 — серия Premier Magic Lung® Designer для настенного монтажа Составной изгиб из двух частей со смещенной формой губ. Нажмите на модели для получения списка наших базовых номеров моделей для стандартных размеров; просто выберите нужную модель, а затем укажите отделку (окрашенная, нержавеющая сталь, настоящая латунь, настоящая медь или чеканная медь). МОДЕЛИ JCH/A1 |
| Серия Premier Magic Lung® Designer для настенного монтажа | JCH/B1 — серия Premier Magic Lung® Designer для настенного монтажа Составной изгиб из двух частей со смещенной формой губ.Нажмите на модели для получения списка наших базовых номеров моделей для стандартных размеров; просто выберите нужную модель, а затем укажите отделку (окрашенная, нержавеющая сталь, настоящая латунь, настоящая медь или чеканная медь). Все продукты Vent-A-Hood Magic Lung подходят для использования во влажных местах (на открытом воздухе, например, в крытом патио) при установке в ответвленной цепи с защитой GFCI. Рекомендуемая высота установки — 30 дюймов над варочной поверхностью. МОДЕЛИ JCH/B1 |
| Серия Premier Magic Lung® Designer для настенного монтажа | JCH/C1 — серия Premier Magic Lung® Designer для настенного монтажа Выпуклая форма с заостренными уголками и смещенной формой губ.Нажмите на модели для получения списка наших базовых номеров моделей для стандартных размеров; просто выберите нужную модель, а затем укажите отделку (окрашенная, нержавеющая сталь, настоящая латунь, настоящая медь или чеканная медь). Все продукты Vent-A-Hood Magic Lung подходят для использования во влажных местах (на открытом воздухе, например, в крытом патио) при установке в ответвленной цепи с защитой GFCI. Рекомендуемая высота установки — 30 дюймов над варочной поверхностью. МОДЕЛИ JCH/C1 |
| Серия Premier Magic Lung® Designer для настенного монтажа | JCH/C2 — серия Premier Magic Lung® Designer для настенного монтажа Выпуклая кривая с моделированием губ. МОДЕЛИ JCH/C2 |
| Серия Premier Magic Lung® Designer для настенного монтажа | JCWR18 — серия Premier Magic Lung® Designer для настенного монтажа Закругленная передняя часть с выступающей отделкой.Нажмите на модели для получения списка наших базовых номеров моделей для стандартных размеров; просто выберите нужную модель. Эта модель доступна из нержавеющей стали со стандартной зеркальной отделкой из нержавеющей стали. МОДЕЛИ JCWR18 |
| Серия Premier Magic Lung® Designer для настенного монтажа | JDH/C1 — серия Premier Magic Lung® Designer для настенного монтажа Конкейв с толстыми губами.Нажмите на модели для получения списка наших базовых номеров моделей для стандартных размеров; просто выберите нужную модель, а затем укажите отделку (окрашенная, нержавеющая сталь, настоящая латунь, настоящая медь или чеканная медь). Все продукты Vent-A-Hood Magic Lung подходят для использования во влажных местах (на открытом воздухе, например, в крытом патио) при установке в ответвленной цепи с защитой GFCI. Рекомендуемая высота установки — 30 дюймов над варочной поверхностью. МОДЕЛИ JDH/C1 |
| Серия Premier Magic Lung® Designer для настенного монтажа | JDH/C2 — серия Premier Magic Lung® Designer для настенного монтажа Конкейв с тонкой укладкой губ.Нажмите на модели для получения списка наших базовых номеров моделей для стандартных размеров; просто выберите нужную модель, а затем укажите отделку (окрашенная, нержавеющая сталь, настоящая латунь, настоящая медь или чеканная медь). Все продукты Vent-A-Hood Magic Lung подходят для использования во влажных местах (на открытом воздухе, например, в крытом патио) при установке в ответвленной цепи с защитой GFCI. Рекомендуемая высота установки — 30 дюймов над варочной поверхностью. МОДЕЛИ JDH/C2 |
| Серия Premier Magic Lung® Designer для настенного монтажа | JDH/C3 — серия Premier Magic Lung® Designer для настенного монтажа Конкейв с толстыми губами. МОДЕЛИ JDH/C3 |
| Серия Premier Magic Lung® Designer для настенного монтажа | JPH/C1 — серия Premier Magic Lung® Designer для настенного монтажа Пирамидальная форма с толстыми губами.Нажмите на модели для получения списка наших базовых номеров моделей для стандартных размеров; просто выберите нужную модель, а затем укажите отделку (окрашенная, нержавеющая сталь, настоящая латунь, настоящая медь или чеканная медь). МОДЕЛИ JPH/C1 |
| Серия Premier Magic Lung® Designer для настенного монтажа | JPH/C2 — серия Premier Magic Lung® Designer для настенного монтажа Пирамидальная форма со смещенной формой губ.Нажмите на модели для получения списка наших базовых номеров моделей для стандартных размеров; просто выберите нужную модель, а затем укажите отделку (окрашенная, нержавеющая сталь, настоящая латунь, настоящая медь или чеканная медь). Все продукты Vent-A-Hood Magic Lung подходят для использования во влажных местах (на открытом воздухе, например, в крытом патио) при установке в ответвленной цепи с защитой GFCI. Рекомендуемая высота установки — 30 дюймов над варочной поверхностью. МОДЕЛИ JPH/C2 |
| Premier Magic Lung® Euro Style для настенного монтажа | NEPH28 — Premier Magic Lung® Euro Style для настенного монтажа Этот Nouveau Euroline Pro с 4-дюймовым закругленным краем разработан специально для легкого бытового кухонного оборудования «коммерческого типа».Чтобы заказать глубину 27 дюймов, добавьте «X» после «EP» в номере модели. Серия Euroline Pro с кромкой Nouveau также доступна с верхней частью шириной 26 дюймов и глубиной 14 дюймов, чтобы обеспечить более высокие требования к CFM. недоступны для этой модели.Нажмите на модели, чтобы получить список наших базовых номеров моделей для стандартных размеров; просто выберите нужную модель, а затем укажите отделку (окрашенная, нержавеющая сталь, настоящая латунь, настоящая медь или кованая медь). ) Рекомендуемая высота установки составляет 30 дюймов от варочной поверхности.Показана с соответствующей крышкой воздуховода для настенного монтажа (продается отдельно), доступной в стандартных размерах для потолков высотой 8, 9 и 10 футов или в нестандартных размерах. МОДЕЛИ NEPH28 |
| Premier Magic Lung® Euro Style для настенного монтажа | NEPTh28 — Premier Magic Lung® Euro Style для настенного монтажа Этот Euroline Pro с закругленной кромкой специально разработан для покрытия легкого бытового кухонного оборудования «коммерческого типа».Чтобы заказать глубину 27 дюймов, добавьте «X» после «EP» в номере модели. Серия Euroline Pro с изумрудной кромкой также доступна с верхней частью шириной 26 дюймов и глубиной 14 дюймов, чтобы обеспечить более высокие требования к CFM. недоступны для этой модели.Нажмите на модели, чтобы получить список наших базовых номеров моделей для стандартных размеров; просто выберите нужную модель, а затем укажите отделку (окрашенная, нержавеющая сталь, настоящая латунь, настоящая медь или кованая медь). МОДЕЛИ NEPTh28 |
| Premier Magic Lung® Professional/Standard для настенного монтажа | NPh28 — Premier Magic Lung® Professional/Standard для настенного монтажа Закругленная передняя кромка создает современный визуальный эффект.Включает систему воздуходувки Magic Lung®. Светильники оснащены двойным переключателем для затемнения. Оснащен тепловым датчиком SensaSource®. Доступны популярные стандартные или индивидуальные цвета краски, нержавеющая сталь, настоящая латунь, настоящая медь или чеканная медь. МОДЕЛИ NPh28 |
| ARS для настенного монтажа без воздуховодов | ПДАх24-К — ARS для настенного монтажа без воздуховодов Используя запатентованную 4-фазную технологию и Power Lung, серия Vent-A-Hood ARS идеально подходит для приготовления пищи в домашних условиях, где вентиляция невозможна.Эта настенная вытяжка в европейском стиле создает многослойный визуальный эффект. Включает воздуходувку Power Lung серии K. Нажмите на модели для получения списка наших базовых номеров моделей для стандартных размеров; просто выберите нужную модель, а затем укажите отделку (окрашенная, нержавеющая сталь, настоящая латунь, настоящая медь или чеканная медь). Рекомендуемая высота установки — 24 дюйма над варочной поверхностью. ПДАх24-К МОДЕЛИ |
| ARS для настенного монтажа без воздуховодов | PDAH7-K — ARS для настенного монтажа без воздуховодов Используя запатентованную 4-фазную технологию и Power Lung, серия Vent-A-Hood ARS идеально подходит для приготовления пищи в домашних условиях, где вентиляция невозможна. Линейный стиль прекрасно подчеркивает кухню в профессиональном стиле. Включает воздуходувку Power Lung серии K.Нажмите на модели для получения списка наших базовых номеров моделей для стандартных размеров; просто выберите нужную модель, а затем укажите отделку (окрашенная или нержавеющая сталь). Недоступно из настоящей латуни, настоящей меди или чеканной меди. Рекомендуемая высота установки — 24 дюйма над варочной поверхностью. МОДЕЛИ PDAH7-K |
| Premier Magic Lung® Euro Style для настенного монтажа | PDh24 — Premier Magic Lung® Euro Style для настенного монтажа Эта серия Euroline с квадратной кромкой представляет собой универсальную вытяжку в европейском стиле, которую можно устанавливать отдельно или между шкафами.В этой модели нет обогревательных ламп. Нажмите на модели для получения списка наших базовых номеров моделей для стандартных размеров; просто выберите нужную модель, а затем укажите отделку (окрашенная, нержавеющая сталь, настоящая латунь, настоящая медь или чеканная медь). Рекомендуемая высота установки составляет 24 дюйма от варочной поверхности. Показан с соответствующей крышкой воздуховода для настенного монтажа (продается отдельно), доступной в стандартных размерах для потолков высотой 7, 8 и 9 футов или в размерах, нестандартных размеров. ПДх24 МОДЕЛИ |
| Настенное крепление Premuim Power Lung (V-Line) | PDh24-K — Premuim Power Lung (V-Line) для настенного монтажа Линейный стиль прекрасно подчеркивает кухню в профессиональном стиле. Включает в себя систему обдува Power Lung серии K, которая идеально подходит для приготовления легких и умеренных блюд (класс шума составляет 7,4 сона на высокой скорости). Светильники оснащены двойным переключателем для затемнения.Оснащен тепловым датчиком SensaSource®. Доступны популярные стандартные или индивидуальные цвета краски, нержавеющая сталь, настоящая латунь, настоящая медь или чеканная медь. Показан с соответствующей крышкой воздуховода для настенного монтажа (продается отдельно). Рекомендуемая высота установки составляет 24 дюйма над варочной поверхностью. ПДх24-К МОДЕЛИ |
| Настенное крепление Premuim Power Lung (V-Line) | PDH7-K — Premuim Power Lung (V-Line) для настенного монтажа Низкопрофильный линейный дизайн прекрасно подчеркивает профессиональную кухню.Включает в себя систему обдува Power Lung серии K, которая идеально подходит для приготовления легких и умеренных блюд (класс шума составляет 7,4 сона на высокой скорости). Светильники оснащены двойным переключателем для затемнения. Оснащен тепловым датчиком SensaSource®. Доступны популярные стандартные или индивидуальные цвета краски, нержавеющая сталь, настоящая латунь, настоящая медь или чеканная медь. Показан с соответствующей крышкой воздуховода для настенного монтажа (продается отдельно). Рекомендуемая высота установки составляет 24 дюйма над варочной поверхностью. Подходит для использования в крытых наружных помещениях при установке в ответвленной цепи с защитой GFCI. МОДЕЛИ PDH7-K |
| Premier Magic Lung® Euro Style для настенного монтажа | PDL14 — Premier Magic Lung® Euro Style для настенного монтажа Эта серия Euroline со скошенной кромкой представляет собой универсальную вытяжку в европейском стиле, которая может стоять отдельно или устанавливаться между шкафами. В этой модели нет обогревательных ламп. Нажмите на модели для получения списка наших базовых номеров моделей для стандартных размеров; просто выберите нужную модель, а затем укажите отделку (окрашенная, нержавеющая сталь, настоящая латунь, настоящая медь или чеканная медь).Рекомендуемая высота установки составляет 24 дюйма от варочной поверхности. Показана с соответствующей крышкой воздуховода для настенного монтажа (продается отдельно), доступной в стандартных размерах для высоты потолка 7 футов, 8 футов и 9 футов или в нестандартных размерах. Все Vent-A-Hood продукты подходят для использования во влажных местах (на открытом воздухе, например, в крытом патио) при установке в ответвленной цепи с защитой GFCI. МОДЕЛИ PDL14 |
| Premier Magic Lung® Professional/Standard для настенного монтажа | PRh28 — Premier Magic Lung® Professional/Standard для настенного монтажа Линейный стиль прекрасно подчеркивает кухню в профессиональном стиле.Включает систему воздуходувки Magic Lung®. Светильники оснащены двойным переключателем для затемнения. Оснащен тепловым датчиком SensaSource®. Доступны популярные стандартные или индивидуальные цвета краски, нержавеющая сталь, настоящая латунь, настоящая медь или чеканная медь. Рекомендуемая высота установки составляет 30 дюймов над варочной поверхностью. Подходит для использования в крытых наружных помещениях при установке в ответвленной цепи с защитой GFCI. Также доступны нестандартные размеры. ПРХ28 МОДЕЛИ |
| | ПРх28-М — Линия М Настенный Профессиональная серия предназначена для коммерческого использования. ПРх28-М МОДЕЛИ |
| Premier Magic Lung® Professional/Standard для настенного монтажа | PWVh28 — Premier Magic Lung® Professional/Standard для настенного монтажа Классический дизайн настенного крепления подходит для любой кухни.Выберите вертикальные концы, которые идеально подходят для установки между шкафами, или вогнутые концы для французского деревенского стиля. К некоторым моделям могут быть добавлены тепловые лампы. МОДЕЛИ PWVh28 |
| Premier Magic Lung® Professional/Standard для настенного монтажа | PWVh40 — Premier Magic Lung® Professional/Standard для настенного монтажа Отличается четким наклоном и четким передним концом. К некоторым моделям могут быть добавлены тепловые лампы. МОДЕЛИ PWVh40 |
| Premier Magic Lung® Euro Style для настенного монтажа | SEPH28 — Premier Magic Lung® Euro Style для настенного монтажа Эта серия Euroline Pro с изумрудной кромкой специально разработана для покрытия легкого бытового кухонного оборудования «коммерческого типа».Чтобы заказать глубину 27 дюймов, добавьте «X» после «EP» в номере модели. Серия Euroline Pro с изумрудной кромкой также доступна с верхней частью шириной 26 дюймов и глубиной 14 дюймов, чтобы обеспечить более высокие требования к CFM. МОДЕЛИ SEPH28 |
| Premier Magic Lung® Euro Style для настенного монтажа | SEPTh28 — Premier Magic Lung® Euro Style для настенного монтажа Этот Euroline Pro с изумрудной кромкой специально разработан для покрытия легкого бытового кухонного оборудования «коммерческого типа». МОДЕЛИ SEPTh28 |
| Premier Magic Lung® Euro Style для настенного монтажа | SLDh24 — Premier Magic Lung® Euro Style для настенного монтажа Эта серия Euroline с изумрудной кромкой представляет собой универсальную вытяжку в европейском стиле, которая может стоять отдельно или устанавливаться между шкафами. МОДЕЛИ СЛДх24 |
| Premier Magic Lung® Professional/Standard для настенного монтажа | SLh28 — Premier Magic Lung® Professional/Standard для настенного монтажа Мягкие углы запатентованной губы цвета Emerald создают современный вид. Включает систему воздуходувки Magic Lung®. Светильники оснащены двойным переключателем для затемнения. Оснащен тепловым датчиком SensaSource®. Доступны популярные стандартные или индивидуальные цвета краски, нержавеющая сталь, настоящая латунь, настоящая медь или чеканная медь.Рекомендуемая высота установки составляет 30 дюймов над варочной поверхностью. Подходит для использования в крытых наружных помещениях при установке в ответвленной цепи с защитой GFCI. Также доступны нестандартные размеры. SLh28 МОДЕЛИ |
| Premier Magic Lung® Professional/Standard для настенного монтажа | SLh40 — Premier Magic Lung® Professional/Standard для настенного монтажа Популярный современный дизайн этой настенной вытяжки со сглаженными углами придает современный вид.К некоторым моделям могут быть добавлены тепловые лампы. Нажмите на модели для получения списка наших базовых номеров моделей для стандартных размеров; просто выберите нужную модель, а затем укажите отделку (окрашенная, нержавеющая сталь, настоящая латунь, настоящая медь или чеканная медь). Рекомендуемая высота установки составляет 30 дюймов над варочной поверхностью. Все продукты Vent-A-Hood подходят для использования во влажных местах (на открытом воздухе, например, в крытом патио) при установке в ответвленной цепи с защитой GFCI. SLh40 МОДЕЛИ |
| Premier Magic Lung® Contemporary для настенного монтажа | XLh22 — Premier Magic Lung® Contemporary для настенного монтажа Выпуклая форма для губ.Кромка входит в комплект — укажите: настоящая латунь (B), настоящая медь (C), зеркальная нержавеющая сталь (M) или матовая нержавеющая сталь (S). Просто выберите нужную модель, а затем укажите покрытие для губ. Вытяжка из нержавеющей стали. Рекомендуемая высота установки 24 дюйма над варочной поверхностью. Показан с соответствующей готовой трубой воздуховода и декоративными манжетами (продаются отдельно), доступны стандартные размеры для потолков высотой 7, 8 и 9 футов или нестандартные размеры. Все Vent-A- Вытяжные изделия подходят для использования во влажных местах (на открытом воздухе, например, в крытом патио) при установке в ответвленной цепи с защитой GFCI. XLh22 МОДЕЛИ |
| Premier Magic Lung® Professional/Standard для настенного монтажа | XRh28 — Premier Magic Lung® Professional/Standard для настенного монтажа Полосы из нержавеющей стали и закругленная форма этой европейской настенной вытяжки создают уникальный дизайн. Никаких полос на настоящей латуни или настоящей медной накладке. К некоторым моделям могут быть добавлены тепловые лампы. Нажмите на модели для получения списка наших базовых номеров моделей для стандартных размеров; просто выберите нужную модель, а затем укажите отделку (окрашенная, нержавеющая сталь, настоящая латунь, настоящая медь или чеканная медь).Рекомендуемая высота установки составляет 30 дюймов над варочной поверхностью. Соответствующие крышки воздуховодов для настенного монтажа (продаются отдельно) доступны в стандартных размерах для высоты потолка 8 футов, 9 футов и 10 футов или в нестандартных размерах. Все продукты Vent-A-Hood подходит для использования во влажных местах (на открытом воздухе, например, в крытом патио) при установке в ответвленной цепи с защитой GFCI. XRh28 МОДЕЛИ |
| Premier Magic Lung® Contemporary для настенного монтажа | ZTH — Premier Magic Lung® Contemporary для настенного монтажа Выпуклая со вставкой из черного стекла и стилизованной рейкой.Доступен в версии из нержавеющей стали. Рекомендуемая высота установки 30 дюймов над варочной поверхностью. Показаны с соответствующими крышками воздуховодов для настенного монтажа (продаются отдельно), доступны в стандартных размерах для потолков высотой 7, 8 и 9 футов или в нестандартных размерах. Все продукты Vent-A-Hood подходят для использования во влажных местах (на открытом воздухе, например, в крытом патио) при установке в ответвленной цепи с защитой GFCI. МОДЕЛИ ZTH |
Подвешивание промышленной стальной вытяжки
«Как дела?» Это был большой вопрос на прошлой неделе.Не в «Привет, как дела?» смысл вещей, но больше в стиле «Гм, как мы собираемся повесить этот капюшон за 60 долларов, который мы нашли на Craigslist».
Шерри рассказала на прошлой неделе о том, как мы планировали заключить его в деревянную обложку, сделанную своими руками (см. вдохновляющие фотографии в посте на прошлой неделе). Мы оба были так взволнованы (1) ценой и (2) окончательным видом, что не продумали среднюю часть: на самом деле установка чертовой штуки. Так что да… #planningfail?
Вот в чем была наша проблема (кроме того, что у нас не было ни материалов по установке, ни инструкции): это вытяжка под шкафом, и у нас нет шкафов, под которые ее можно было бы установить.Я полагал, что в Интернете есть десятки сайтов, подробно описывающих, как преобразовать вытяжку под шкафом в настенную, поэтому я не беспокоился… пока мои поиски в Google не начали приводить к пустым результатам. Именно тогда я начал сомневаться в нашем плане. Было ли это просто чем-то, что нельзя было сделать?
Потом я обнаружил это.
Мы такие не покупали (у нас вытяжка марки Jenn-Air). Но тот факт, что Kenmore продавал кронштейн специально «для крепления вытяжек к стене, когда верхний шкаф не используется», означал, что было не совсем безумной идеей переоборудовать нашу так, чтобы она также висела на стене.Итак, Шерри и я придумали план, сделали покупки и приготовились к подвеске капота (и возможной неудаче подвески капота, что всегда возможно, когда мы пытаемся разобраться с этим на ходу). Это изображение скоро станет более понятным, но просто знайте, что оно включает в себя несколько деревянных деталей в качестве импровизированной монтажной панели и несколько мощных металлических кронштейнов в качестве замены для шкафа.
Но прежде чем мы смогли привести наш план в действие, нужно было позаботиться о некоторых деталях.Знаете, такие мелочи, как «о да, мы не уложили плитку достаточно высоко под вентиляционной трубой». Очередной провал в планировании. Да ладно, ушло около 20 минут на то, чтобы приготовить небольшую партию тонкой крошки и заполнить ее запасными плитками. Да, возвращаться к фазе тайлинга (особенно для восьми жалких рядов) немного сводило с ума, но к этому моменту мы научились просто смеяться. Немного вздрогнуть. Смейтесь еще. И сделать это.
Затем мы нанесли на стену все важные вещи, чтобы убедиться, что они висят там, где должны висеть.Выглядит довольно сумасшедшим, не так ли? Но обещаю, в этом есть смысл…
Вся эта малярная лента отмечает важные ориентиры, такие как:
- 1 и 2: Куда пойдут наши плавающие полки — важно, потому что мы хотели, чтобы нижняя часть вытяжки и верхняя полка были выровнены (что было примерно в 34 дюймах от верхней части стойки, которая находится прямо между вытяжкой). рекомендуемое производителем расстояние 30–36 дюймов от плиты)
- 3, 4 и 5 : Где находятся наши шпильки – важно, чтобы мы могли надежно прикрепить вытяжку к стене
- 6 : Центральная точка нашей печи – важно, чтобы колпак висел прямо над печью
На случай, если вам интересно, как я обнаружил шпильки, могу сказать, что это произошло благодаря предусмотрительности со стороны Шерри.Еще когда эта стена была открыта, она умоляла меня как-то отметить, где они были, прежде чем мы покроем все плиткой, поэтому я решил сделать небольшие отметки на потолке, чтобы отслеживать, где находится каждая стойка. Затем я прикрепил кусок нити к этой отметке, привязал скрепку к другому концу (чтобы утяжелить его) и вуаля — идеально отмеченный шпилька на всю стену. И как только мы повесим наш карниз на потолок, эти маленькие точки, обозначающие шпильки, будут скрыты раз и навсегда.
Когда все наши направляющие были отмечены, пришло время прикрутить наш первый кусок дерева.Вот и дело с дровами. Капюшон сам по себе технически был достаточно широким, чтобы висеть на двух шпильках, за исключением того, что шпильки не совпадали с двумя прорезями в задней части капюшона (которые были на обоих концах), и я не верил, что он удержится. таким образом, даже если они были выстроены идеально.
Итак, мы решили прикрутить кусок дерева немного шире капота к двум шпилькам (и использовать прочный анкер, чтобы закрепить его в третьем месте), а затем повесить капот на дополнительные винты, которые совмещены с вырезы на капоте.На самом деле мы получили благословение подрядчика (просто мне казалось неправильным сверлить нашу красивую стену из плитки, не проверив сначала наш план с экспертом. Поэтому после этого телефонного звонка мы сделали несколько глубоких вдохов и перешли к следующему (очень страшно) часть нашего плана: сверлить нашу плитку.Вдох.
Купил специальную насадку для стекла и плитки. Потребовалось некоторое давление, но в конце концов я просверлил все свои отверстия. Хотя я думаю, что мы оба тихо сходили с ума все время, пока шло бурение.
После того, как мы закончили изрешечивать нашу плитку отверстиями (хорошо, их было всего шесть), я использовал 2,5-дюймовые винты, чтобы прикрепить толстую деревянную доску к стене. Должен сказать вам, что ощущение того, как эти винты так крепко сжимают шпильку, было одним из самых внушающих доверие моментов в этом процессе. Мне казалось, что я могла бы повиснуть на этой штуке всем своим телом — то есть, если бы мне удалось ухватиться за крошечный выступ своими длинными девичьими пальцами.
С одной доской (для подвешивания капота) мне пришлось прикрепить вторую (для подвешивания кронштейнов) также с помощью длинных винтов к двум шпилькам и третьего набора винтов к усиленным анкерам для дальнейшего усиления.Тогда это выглядело примерно так. Примечание: вентиляционная труба немного смещена от центра, а не доски (поэтому, как только мы построим раму для капота, это будет решено, и все будет выглядеть по центру). О, и синие стрелки указывают на два винта, на которых будет висеть капот.
Мы чувствовали себя довольно хорошо, когда поняли, что большинство верхних шкафов просто крепятся к шпилькам с помощью винтов, а затем загружаются посудой, тарелками и другими предметами (а затем ко всему этому весу может быть добавлен капюшон), и весь этот шум остается вверх.
Кстати говоря, пришло время поднять капот (поскольку кронштейны должны были подняться после капота). Ладно, возможно, эта часть была страшнее сверления плитки. Мы наполовину представили, как вся стена плитки отрывается от шпилек. Но к счастью для нас, он не сдвинулся с места. Он был там твердым, как скала. И это хорошая новость, потому что, очевидно, я мог бы тратить меньше времени на беспокойство о развешанных капюшонах и больше времени на бритье…
В любом случае. На всякий случай Шерри поддержала капюшон (у нее идеальная высота, чтобы положить его на голову из-под него, стоя на небольшой стремянке), и я прикрепил кронштейны к деревянной панели, а затем к капоту, используя те же пазы, где они должны были стоять. прикреплен к настенному шкафу.
К этому моменту он чувствовал себя в достаточной безопасности, поэтому я освободил голову Шерри от обязанностей по удерживанию капюшона, пока я закреплял второй кронштейн, и она сделала еще несколько фотографий.
После того, как он был плотно прижат к стене, я позаботился о некоторых последних штрихах, таких как прикрепление вентиляционной трубы к вытяжке и ее подключение (кстати, как нам повезло, что существующее отверстие для заглушки в вытяжке было довольно много идеально подходит для нашей торговой точки ???) – и мы были в деле.Фу! Обновление : с тех пор мы узнали, что лента из металлической фольги (продается в хозяйственных магазинах) лучше подходит для склеивания этого воздуховода, чем клейкая лента (независимо от более подходящего названия последней — ха-ха), поэтому мы будем переклеивать это отверстие с помощью лента из фольги, чтобы сохранить уплотнение красивым и прочным в течение длительного времени. Спасибо за совет, ребята!
Ладно, признаться, сейчас это выглядит довольно уродливо. Открытая труба/дерево/гигантская дыра в потолке выглядят не очень хорошо, не так ли?
Но это было хорошее начало.Мало того, что у нас была вытяжка впервые за более чем два месяца, у нас была вытяжка, которая не была сумасшедше близкой к плите, как наша старая микроволновая печь (мы повесили ее на 34 дюйма от верхней части стойки, что правильно). между рекомендуемым производителем вытяжки расстоянием 30–36 дюймов от плиты). И эта вытяжка имеет два причудливых режима освещения. Ооооо. Ааааа.
И я знаю, что открытая древесина выглядит довольно безумно, особенно потому, что она торчит примерно на дюйм по бокам.Но я обещаю, что это все часть плана (подсказка: они сделают хорошее место, чтобы прикрепить мою самодельную деревянную крышку капота), так что просто потерпите меня пару дней.
О, и не обращайте внимания на этот POV, мы еще не установили фильтры (они в основном представляют собой большие прямоугольники из нержавеющей стали, поэтому снизу они выглядят намного лучше, когда они установлены). Скоро мы должны будем поделиться другими фотографиями.
Теперь, если вы все еще беспокоитесь о том, что эта штука рухнет за ночь (мы были — мы на самом деле вытащили плиту перед тем, как лечь спать в первую ночь на всякий случай!), знайте, что она пережила несколько полных дней. без единого скрипа или тряски.Так что без сглаза мы с Шерри называем этот подвесной проект успешным. Как говорится, в гетто все хорошо. Благодаря длинным винтам, прочно входящим в эти шпильки, и сверхмощным кронштейнам, также добавляющим дополнительную поддержку сверху, этот парень чертовски надежен. Итак, после нескольких дней задержки дыхания капитан Осторожный может официально выдохнуть.
Теперь самое интересное (?) — сделать для него красивое деревянное покрытие. Кто-нибудь, раскрутите мои джемы! Мы вернемся со всеми этими подробностями через несколько дней, а пока что вы, ребята, делали в эти выходные? Какой-нибудь тяжелый предмет висит? Сверление плитки? Используя свою голову, чтобы что-то поддерживать? О, и что-то сумасшедшее, сумасшедшее, происходит в нашем доме сегодня (ну, это начинается сегодня и длится в течение следующих трех недель!!!), так что мы расскажем вам обо всем этом завтра (как только мы переживем один день это и есть несколько фотографий, чтобы поделиться).
Ещё публикации от Young House LoveКак рассчитать размер вентилятора кухонной вытяжки
Кухонные вытяжки с вентиляцией наружу — отличный способ удалить тепло, запахи, влагу и дым из дома во время приготовления пищи. Вентиляторы в вытяжках оцениваются по кубическим футам воздуха, которые они перемещают в минуту (CFM), и важно купить вытяжку, которая перемещает достаточно воздуха, чтобы быть эффективной. Ниже приведены несколько различных способов расчета CFM для вытяжки.
Размер вентилятора вытяжки
Основное эмпирическое правило при определении размера вентилятора вытяжки заключается в том, что он должен перемещать воздух со скоростью не менее 100 кубических футов в минуту на каждые 12 дюймов ширины печи. Таким образом, если у вас печь шириной 30 дюймов, вам понадобится вытяжка с вентилятором, который перемещает воздух со скоростью не менее 250 кубических футов в минуту:
Печь шириной 2,5 фута x 100 = 250 кубических футов в минуту минимальный размер вентилятора вытяжной вытяжки
Размер помещения
Вы также должны учитывать размер вашей кухни в кубических футах при расчете необходимого размера вытяжного вентилятора, поскольку большая кухня нуждается в большей вентиляции для очистки воздуха, чем меньшая комната.
Вытяжка должна обеспечивать воздухообмен на кухне не менее 15 раз в час или каждые четыре минуты. Например, если ваша кухня 16 футов в длину x 16 футов в ширину с 8 футовым потолком, она будет содержать 2048 кубических футов пространства:
16 футов в ширину x 16 футов в длину x 8 футов в высоту = 2048 кубических футов
Чтобы найти вентилятора, необходимого для вашей кухни, умножьте количество кубических футов в помещении на количество воздухообменов (15), затем разделите на количество минут в часе (60).
Например:
2 048 кубических футов помещения x 15 воздухообменов = 30 720 кубических футов, перемещаемых в час разделите количество кубических метров в комнате на четыре минуты:
2048 кубических футов комнаты ÷ 4 минуты = 512 CFM вытяжной вентилятор или больше
Газовая плита
на электрическую плиту, поэтому кухня с газовой плитой требует большей мощности вытяжного вентилятора.
Чтобы рассчитать размер вентилятора, необходимого для газовой плиты, объедините рейтинги БТЕ для всех горелок на вашей плите (газовые горелки варьируются от 5000 до 15000 БТЕ на горелку, в среднем около 10000 БТЕ на горелку и в сумме около 40 000 для стандартной плиты с 4 конфорками), затем разделите на 100, чтобы найти минимальный кубический фут в минуту, необходимый для кухни с газовой плитой. Например:
Газовая плита 40 000 BTU ÷ 100 = 400 CFM вентилятор вытяжного шкафа или больше
Воздуховод вытяжного шкафа
Размер, форма, длина, повороты и заглушка на воздуховоде вытяжного шкафа добавляют сопротивление, которое уменьшает количество воздуха вентиляционный вентилятор может двигаться, что требует дополнительного CFM для вентилятора.
При использовании гладкой круглой металлической трубы диаметром 8 дюймов добавьте один кубический фут в минуту на каждый фут трубы, плюс 25 кубических футов в минуту на каждое колено и 40 кубических футов в минуту на крышу.
Например, если вентиляционная труба имеет длину 10 футов с двумя коленами и заглушкой на крыше, вам потребуется добавить еще 100 кубических футов в минуту к приведенным выше номинальным размерам вентилятора:
10 длина трубы + 25 колен + 25 колено + 40 крыша cap = 100 CFM
Расчет диапазона Размер вытяжного вентилятора CFM
Чтобы сделать окончательный расчет, возьмите большее значение CFM для ширины печи, размера помещения и горелки печи.
Важно, чтобы стоящий у плиты повар не ощущал ни малейшего дискомфорта и не цеплял висящую над головой вытяжку.
Подходит для газовых плит и кухонь, которые имеют доступ к вентиляционной шахте. Если он отсутствует, то монтаж проводить не рекомендуется. Главное их достоинство – качественное поглощение испарений, неприятных запахов. Комплектуются фильтрами алюминиевого типа.

Как правило, ее тоже нужно крепить на шурупы, саморезы или дюбели.
Лучший вариант – . Воздуховод из гофры имеет ребристость, что создает дополнительные препятствия для выходящего воздуха.
Здесь следует правильно рассчитать диаметр воздуховода (он должен находиться в пределах 120-150 мм). Воздуховод не сужают, по возможности не сгибают и не удлиняют – это поможет минимизировать потери мощности. Устанавливается квадратный или круглый воздуховод – но желательно гладкий, а не гофрированный, иначе существенно усилится шумовой эффект от работающей на кухне вытяжки.
Получившееся соединение сжимается хомутами и смазывается силиконом для герметичности.
Нажмите на модели для получения списка наших базовых номеров моделей для стандартных размеров; просто выберите нужную модель, а затем укажите отделку. Доступен в стандартной и индивидуальной окраске (может взиматься дополнительная плата). Рекомендуемая высота установки составляет 33 дюйма над варочной поверхностью. В комплект входят две боковые панели и брызговик высотой 30 дюймов x ширина вытяжки; окрашенный круглый воздуховод и потолочный хомут продаются отдельно. Все продукты Vent-A-Hood подходят для использования во влажных местах (на открытом воздухе, например, в крытом патио) при установке в ответвленной цепи с защитой GFCI.
Эта современная настенная вытяжка создает многослойный визуальный эффект. Включает воздуходувку Power Lung серии K. Нажмите на модели для получения списка наших базовых номеров моделей для стандартных размеров; просто выберите нужную модель, а затем укажите отделку (окрашенная или нержавеющая сталь).Недоступно из настоящей латуни, настоящей меди или чеканной меди. Рекомендуемая высота установки — 24 дюйма над варочной поверхностью. Показан с соответствующей крышкой воздуховода ARS, доступны стандартные размеры для потолков высотой 7, 8 и 9 футов. Крышка воздуховода и блок фильтра ARS продаются отдельно.
Светильники оснащены двойным переключателем для затемнения. Оснащен тепловым датчиком SensaSource®. Доступен в популярных цветах окраски (только бисквитный, черный, дымчатый и белый) и из нержавеющей стали. Показан с соответствующей крышкой воздуховода для настенного монтажа (продается отдельно). Рекомендуемая высота установки составляет 24 дюйма над варочной поверхностью. Подходит для использования в крытых наружных помещениях при установке в ответвленной цепи с защитой GFCI.
Рекомендуемая высота установки 27 дюймов над варочной поверхностью. Показаны с соответствующими крышками воздуховодов для настенного монтажа (продаются отдельно), доступны в стандартных размерах для потолков высотой 7, 8 и 9 футов или в нестандартных размерах. Все продукты Vent-A-Hood подходят для использования во влажных местах (на открытом воздухе, например, в крытом патио) при установке в ответвленной цепи с защитой GFCI.
Рекомендуемая высота установки составляет 30 дюймов над варочной поверхностью. Все продукты Vent-A-Hood подходят для использования во влажных местах (на открытом воздухе, например, в крытом патио) при установке в ответвленной цепи с защитой GFCI.Нажмите здесь для получения подробной информации о том, как этот капюшон может иметь обратную вентиляцию.
Все продукты Vent-A-Hood подходят для использования во влажных местах (на открытом воздухе, например, в крытом патио) при установке в ответвленной цепи с защитой GFCI.
Нажмите на модели для получения списка наших базовых номеров моделей для стандартных размеров; просто выберите нужную модель, а затем укажите отделку (окрашенная или нержавеющая сталь). Зеркальные вставки из нержавеющей стали (капот и крышка воздуховода) в комплекте. Недоступно из настоящей латуни, настоящей меди или чеканной меди. Рекомендуемая высота установки 27 дюймов над варочной поверхностью. Показаны с соответствующими крышками воздуховодов для настенного монтажа (продаются отдельно), доступны в стандартных размерах для высоты потолка 7 футов, 8 футов и 9 футов или в нестандартных размерах. Все продукты Vent-A-Hood подходят для использования во влажных местах (на открытом воздухе, например, в крытом патио) при установке в ответвленной цепи с защитой GFCI.
Нажмите на модели для получения списка наших базовых номеров моделей для стандартных размеров. Вытяжка доступна из нержавеющей стали. Рекомендуемая высота установки составляет 30 дюймов над варочной поверхностью. Соответствующая крышка воздуховода для настенного монтажа (продается отдельно) доступна в стандартных размерах для высоты потолка 8 футов, 9 футов и 10 футов или в нестандартных размерах.ПОЖАЛУЙСТА, ОБРАТИТЕ ВНИМАНИЕ, ДОСТУПНЫ ДВА ВАРИАНТА ВОЗДУХОДУВКИ. M600 (630 куб. футов/мин) И M1200 (1035 куб. футов/мин).
Рекомендуемая высота установки составляет 30 дюймов над варочной поверхностью. Все продукты Vent-A-Hood подходят для использования во влажных местах (на открытом воздухе, например, в крытом патио) при установке в ответвленной цепи с защитой GFCI.
Рекомендуемая высота установки составляет 30 дюймов над варочной поверхностью. Соответствующие крышки воздуховодов для настенного монтажа (продаются отдельно) доступны в стандартных размерах для высоты потолка 8 футов, 9 футов и 10 футов или в нестандартных размерах.Все продукты Vent-A-Hood подходят для использования во влажных местах (на открытом воздухе, например, в крытом патио) при установке в ответвленной цепи с защитой GFCI.
Рекомендуемая высота установки составляет 30 дюймов над варочной поверхностью. Все продукты Vent-A-Hood подходят для использования во влажных местах (на открытом воздухе, например, в крытом патио) при установке в ответвленной цепи с защитой GFCI.
) Рекомендуемая высота установки составляет 30 дюймов от варочной поверхности.Показана с соответствующей крышкой воздуховода для настенного монтажа (продается отдельно), доступной в стандартных размерах для потолков высотой 8, 9 и 10 футов или в нестандартных размерах. Все продукты Vent-A-Hood подходят для использования во влажных местах (на открытом воздухе, например, в крытом патио) при установке в ответвленной цепи с защитой GFCI.
CFM) И M1200 (1035 CFM).
Чтобы заказать глубину 27 дюймов, добавьте «X» после «EP» в номере модели. Серия Euroline Pro с изумрудной кромкой также доступна с верхней частью шириной 26 дюймов и глубиной 14 дюймов, чтобы обеспечить более высокие требования к CFM. недоступны для этой модели.Нажмите на модели, чтобы получить список наших базовых номеров моделей для стандартных размеров; просто выберите нужную модель, а затем укажите отделку (окрашенная, нержавеющая сталь, настоящая латунь, настоящая медь или кованая медь). ) Рекомендуемая высота установки составляет 30 дюймов от варочной поверхности.Показана с соответствующей крышкой воздуховода для настенного монтажа (продается отдельно), доступной в стандартных размерах для потолков высотой 8, 9 и 10 футов или в нестандартных размерах. Все продукты Vent-A-Hood подходят для использования во влажных местах (на открытом воздухе, например, в крытом патио) при установке в ответвленной цепи с защитой GFCI.
Включает в себя систему обдува Power Lung серии K, которая идеально подходит для приготовления легких и умеренных блюд (класс шума составляет 7,4 сона на высокой скорости). Светильники оснащены двойным переключателем для затемнения. Оснащен тепловым датчиком SensaSource®. Доступен в версии из нержавеющей стали. Включает рельсы из нержавеющей стали фиксированной длины. Показан с соответствующей крышкой воздуховода для настенного монтажа (продается отдельно). Рекомендуемая высота установки составляет 24 дюйма над варочной поверхностью. Подходит для использования в крытых наружных помещениях при установке в ответвленной цепи с защитой GFCI.
Все продукты Vent-A-Hood Magic Lung подходят для использования во влажных местах (на открытом воздухе, например, в крытом патио) при установке в ответвленной цепи с защитой GFCI. Рекомендуемая высота установки — 30 дюймов над варочной поверхностью.
Нажмите на модели для получения списка наших базовых номеров моделей для стандартных размеров; просто выберите нужную модель, а затем укажите отделку (окрашенная, нержавеющая сталь, настоящая латунь, настоящая медь или чеканная медь). Все продукты Vent-A-Hood Magic Lung подходят для использования во влажных местах (на открытом воздухе, например, в крытом патио) при установке в ответвленной цепи с защитой GFCI. Рекомендуемая высота установки — 30 дюймов над варочной поверхностью.
Все продукты Vent-A-Hood Magic Lung подходят для использования во влажных местах (на открытом воздухе, например, в крытом патио) при установке в ответвленной цепи с защитой GFCI. Рекомендуемая высота установки — 30 дюймов над варочной поверхностью.
Все продукты Vent-A-Hood Magic Lung подходят для использования во влажных местах (на открытом воздухе, например, в крытом патио) при установке в ответвленной цепи с защитой GFCI. Рекомендуемая высота установки — 30 дюймов над варочной поверхностью.
Все продукты Vent-A-Hood подходят для использования во влажных местах (на открытом воздухе, например, в крытом патио) при установке в ответвленной цепи с защитой GFCI.
) Рекомендуемая высота установки составляет 30 дюймов от варочной поверхности.Показана с соответствующей крышкой воздуховода для настенного монтажа (продается отдельно), доступной в стандартных размерах для потолков высотой 8, 9 и 10 футов или в нестандартных размерах. Все продукты Vent-A-Hood подходят для использования во влажных местах (на открытом воздухе, например, в крытом патио) при установке в ответвленной цепи с защитой GFCI.
Рекомендуемая высота установки составляет 30 дюймов над варочной поверхностью. Подходит для использования в крытых наружных помещениях при установке в ответвленной цепи с защитой GFCI. Также доступны нестандартные размеры.
Показан с соответствующей крышкой воздуховода ARS, доступны в стандартных размерах для потолков высотой 8 и 9 футов. Крышка воздуховода и блок фильтра ARS продаются отдельно.
Показан с соответствующей крышкой воздуховода ARS, доступны стандартные размеры для потолков высотой 7, 8 и 9 футов. Крышка воздуховода и блок фильтра ARS продаются отдельно.
Все Vent-A-Hood продукты подходят для использования во влажных местах (на открытом воздухе, например, в крытом патио) при установке в ответвленной цепи с защитой GFCI.
Подходит для использования в крытых наружных помещениях при установке в ответвленной цепи с защитой GFCI.

Нажмите на модели для получения списка наших базовых номеров моделей для стандартных размеров. Вытяжка доступна из нержавеющей стали. Рекомендуемая высота установки составляет 30 дюймов над варочной поверхностью. Соответствующая крышка воздуховода для настенного монтажа (продается отдельно) доступна в стандартных размерах для потолков высотой 8 футов, 9 футов и 10 футов или в нестандартных размерах. ПОЖАЛУЙСТА, ОБРАТИТЕ ВНИМАНИЕ, ДОСТУПНЫ ДВА ВАРИАНТА ВОЗДУХОДУВА , M600 (630 куб. фут/мин) И M1200 (1035 куб. фут/мин)
Нажмите на модели для получения списка наших базовых номеров моделей для стандартных размеров; просто выберите нужную модель, а затем укажите отделку (окрашенная, нержавеющая сталь, настоящая латунь, настоящая медь или чеканная медь). Рекомендуемая высота установки составляет 30 дюймов над варочной поверхностью. Соответствующие крышки воздуховодов для настенного монтажа (продаются отдельно) доступны в стандартных размерах для высоты потолка 8 футов, 9 футов и 10 футов или в нестандартных размерах.Все продукты Vent-A-Hood подходят для использования во влажных местах (на открытом воздухе, например, в крытом патио) при установке в ответвленной цепи с защитой GFCI
Нажмите на модели для получения списка наших базовых номеров моделей для стандартных размеров; просто выберите нужную модель, а затем укажите отделку (окрашенная, нержавеющая сталь, настоящая латунь, настоящая медь или чеканная медь). Рекомендуемая высота установки составляет 30 дюймов над варочной поверхностью. Все продукты Vent-A-Hood подходят для использования во влажных местах (на открытом воздухе, например, в крытом патио) при установке в ответвленной цепи с защитой GFCI.
недоступны для этой модели Нажмите на модели, чтобы получить список наших базовых номеров моделей для стандартных размеров; просто выберите нужную модель, а затем укажите отделку (окрашенная или нержавеющая сталь). , или чеканная медь. Рекомендуемая высота установки составляет 30 дюймов от варочной поверхности.Показана с соответствующей крышкой воздуховода для настенного монтажа (продается отдельно), доступной в стандартных размерах для потолков высотой 8, 9 и 10 футов или в нестандартных размерах. Все продукты Vent-A-Hood подходят для использования во влажных местах (на открытом воздухе, например, в крытом патио) при установке в ответвленной цепи с защитой GFCI.
Чтобы заказать глубину 27 дюймов, добавьте «X» после «EP» в номере модели. Серия Euroline Pro с изумрудной кромкой также доступна с верхней частью шириной 26 дюймов и глубиной 14 дюймов, чтобы обеспечить более высокие требования к CFM. недоступны для этой модели Нажмите на модели, чтобы получить список наших базовых номеров моделей для стандартных размеров; просто выберите нужную модель, а затем укажите отделку (окрашенная или нержавеющая сталь). , или чеканная медь. Рекомендуемая высота установки составляет 30 дюймов от варочной поверхности.Показана с соответствующей крышкой воздуховода для настенного монтажа (продается отдельно), доступной в стандартных размерах для потолков высотой 8, 9 и 10 футов или в нестандартных размерах. Все продукты Vent-A-Hood подходят для использования во влажных местах (на открытом воздухе, например, в крытом патио) при установке в ответвленной цепи с защитой GFCI.
В этой модели нет обогревательных ламп. Нажмите на модели для получения списка наших базовых номеров моделей для стандартных размеров; просто выберите нужную модель, а затем укажите отделку (окрашенную или из нержавеющей стали). Недоступно из настоящей латуни, настоящей меди или чеканной меди. Рекомендуемая высота установки составляет 24 дюйма от варочной поверхности. Показан с соответствующей крышкой воздуховода для настенного монтажа (продается отдельно), доступной в стандартных размерах для потолков высотой 7, 8 и 9 футов или в размерах, нестандартных размеров. Все Vent-A-Hood продукты подходят для использования во влажных местах (на открытом воздухе, например, в крытом патио) при установке в ответвленной цепи с защитой GFCI.