Рабочая документация интерьера: план квартиры, помещений, чертежи интерьеров
план квартиры, помещений, чертежи интерьеров
Проектная документация
Проектная документация представляет собой все необходимые чертежи и планы для непосредственной реализации проекта после того, как концепция оформления интерьера (его 3D-визуализация) согласованны или утверждены заказчиком.
Зачем необходима проектная документация, план квартиры и чертежи интерьеров?
Благодаря проектной документации любое дизайнерское решение легко воплощается в реальную жизнь. Это своего рода гарантия того, что у заказчика не возникнет дополнительных трудностей с его строительной бригадой, связанных с несоответствием утверждённой концепции оформления и воссозданным в реальности интерьером.
Проектная документация крайне необходима, если ещё до начала ремонта нужно как можно точнее определить его стоимость, подобрать для себя наиболее приемлемое сочетание цены и качества.
Проектная документация позволяет сэкономить время и нервы в процессе общения заказчика со строительной бригадой.
Если требуется свести к минимуму вовлечённость заказчика в процесс реализации проекта, можно заказать АВТОРСКИЙ НАДЗОР. В его состав входят:
- выезды дизайнера на объект для контроля соответствия концепта с реализуемым проектом
- консультации рабочих бригад по предоставленной проектной документации и чертежам
- корректировки технологической части проекта в соответствии с производственной необходимостью
- дистанционный контроль и рекомендации по реализации проекта при помощи современных средств связи
- рекомендации по выбору декоративно-отделочных материалов, а по договорённости — подбор необходимого декора, текстиля и мебели.
Благодаря полному комплексу услуг, воплощённый в жизнь интерьер гарантированно будет полностью соответствовать разработанному дизайн-проекту интерьера.
Пример состава проектной документации и рабочих чертежей для интерьера
Обмерочный чертёж:
Чертёж потолка гостиной:
План напольных покрытий:
Детская комната. Развёртка:
Ванная комната. Развёртка:
Балкон. Схема расположения электрики:
Гостиная. Развёртка стен:
Прихожая. Развёртка стен:
Потолок. План расположения электроприборов
Спальня. Разрез потолка:
Кухня. Расположение электрики:
Состав проектной рабочей документации
Состав проектной документации меняется в зависимости от технологических особенностей проекта или пожеланий заказчика. Он может включать в себя:
- Обмерочный чертеж
- Планировочное решение расположения помещений с размерами, включая указание их площади
- План расстановки мебели, её количество (с указанием размеров)
- Конструктивный чертёж потолков, включая указание высот, размеров, применяемых материалов
- Конструктивные чертежи гипсокартонных конструкций, любых других декоративных элементов (арки, проемы, ниши, своды)
- Схема расположения потолочных светильников
- Планы-схемы расположения светильников, розеток, выключателей с указанием включаемых/выключаемых зон
- План расстановки слаботочных сетей и их розеток
- План привязки светильников к мебели (по необходимости)
- План полов с указанием уровней, размеров, материалов
- План раскладки напольных покрытий
- План тёплых полов с указанием площадей
- Развёртки-разрезы по помещениям
- Развертки стен помещений с указанием отделочных материалов, их расположения, размеров
- Подготовка дизайн макетов для производства декоративных элементов (картинки для печати на обоях, баннерах, фресках, векторные чертежи для лазерной резьбы, гравировки, эскизы витражей)
- Перечень применяемых отделочных материалов, текстиля (производитель, модель, серия, цвет), указание марки, названия, размеров, цвета мебели, сантехники, бытовой техники, а также используемых светильников.
Данный пункт выполняется за отдельную плату.
Данный состав проектной документации станет незаменимой частью подготовительной работы перед началом реализации дизайн-проекта, позволит оптимизировать затраты на ремонт, а главное — с точностью воссоздать любой спроектированный интерьер.
Рабочая документация дизайн проекта интерьера по ЦЕНЕ 550 руб/кв.м.
Рабочая документация дизайн проекта интерьера СТОИМОСТЬЮ 550 руб/кв.м. Выполняется в среднем за 2-3 недели.
СОСТАВ РАБОЧЕЙ ДОКУМЕНТАЦИИ:
- обмерный план
- план монтажа-демонтажа перегородок
- план стен с размерами после монтажно-демонтажных работ
- план расстановки мебели с размерами
- план расстановки сантехнического оборудования
- план полов с указанием площадей и типов покрытий
- план теплого пола с датчиками включения
- план потолков с указанием размеров и высотных отметок
- план освещения с привязками
- план расположения выключателей с привязками
- план расположения розеток и электрических выводов
- план дверей, размеры полотен, схемы открывания
7 ПРИЧИН ПОЧЕМУ НЕОБХОДИМО ЗАКАЗАТЬ РАБОЧУЮ ДОКУМЕНТАЦИЮ ДИЗАЙН ПРОЕКТА ИНТЕРЬЕРА КВАРТИРЫ по ЦЕНЕ 550 руб/кв.
м.:
1) По срокам рабочая документация дизайн проекта квартиры СТОИМОСТЬЮ 550 руб/кв.м. делается достаточно быстро — 2-3 недели, в зависимости от проектируемой площади квартиры и сложности дизайна. Рабочая документация дизайн проекта значительно облегчает жизнь не только Вам, но и строительной бригаде, которая будет делать у Вас капитальный ремонт квартиры. Благодаря проекту, в котором ВСЕ продумано и прописано вплоть до мелочей, отпадает множество вопросов, которые бы непременно возникли, если бы данного дизайн-проекта у Вас не было. А также защищает Вас от недопонимания со стороны прораба.
2) Рабочая документация дизайн проекта интерьера СТОИМОСТЬЮ 550 руб/кв.м. помогает значительно сэкономить время на объяснения прорабу «на пальцах», что именно и как Вы хотите сделать в своей квартире.
В рабочих чертежах все подробно рассчитано, подписано и образмерено в сантиметрах, где что и как необходимо сделать. Количество света будет четко рассчитано на Вашу площадь, и в квартире не будет «темных» зон. Все выключатели и розетки будут четко расположены в удобных для использования местах. В квартире после продуманного дизайна интерьера будет приятно находиться, и все необходимое будет в «шаговой» доступности и под руками.
3) Разработка рабочей документации дизайн проекта интерьера квартиры — ЭТО НЕДОРОГО всего 550 руб/кв.м. и целесообразно! Затраты на такой дизайн-проект окупятся уже в первый месяц ремонта. Также мы предоставляем проверенную бригаду мастеров для воплощения в жизнь всех дизайнерских задумок и осуществления качественного капитального ремонта. Выезд прораба на объект и составление сметы предстоящего ремонта — совершенно бесплатно и ни к чему Вас не обязывает. Обычно примерную цену капитального ремонта прораб озвучивает по рабочей документации дизайн проекта, так как там максимально подробно описан фронт предстоящих работ.![]()
4) Рабочая документация дизайн проекта интерьера СТОИМОСТЬЮ-550 руб/кв.м.-Это необходимый минимум при проведении любого капитального ремонта. В настоящее время ни одна приличная строительная бригада не работает без рабочей документации дизайн проекта интерьера. Никто не хочет брать на себя ответственность и делать ремонт «на авось и так все получится как надо». Это неудобно ни Вам, ни бригаде-работать
5) Рабочая документация дизайн проекта интерьера по ЦЕНЕ-550 руб/кв.м. позволяет грамотно использовать все имеющееся у Вас пространство квартиры по максимому. В процессе проектирования интерьера можно разработать максимально удобное пространство для жилья: это и большие светлые кухни-гостиные, предусмотреть отдельную прачечную, если позволяет место, чтобы машинка не шумела на кухне или в санузле. Санузел расположенный непосредственно в Вашей спальне, чтобы не выходить в общий коридор.
И вместительные гардеробные для тех, кому надоели шкафы-купе. И тихий кабинет на теплой лоджии и еще множество других важных для последующей жизни и удобных мелочей. Рабочая документация—это необходимость с современном мире РЕМОНТА!
6) Рабочая документация дизайн проекта интерьера СТОИМОСТЬЮ-550 руб/кв.м.
позволяет Вам спокойно и не спеша заниматься подбором чистовых отделочных материалов, вместо того чтобы непрерывно общаться по телефону с прорабом и выяснять кучу разных мелочей касающихся текущего ремонта. У Вас будет около 1-2 месяцев для этого, точные сроки чернового ремонта зависят от площади ремонтируемой квартиры и сложности дизайна.7) Рабочая документация дизайн проекта интерьера СТОИМОСТЬЮ-550 руб/кв.м. Это всего 12 листов, которые КОЛОССАЛЬНО облегчают Вам жизнь и весь процесс прохождения капитального ремонта! С рабочей документацией дизайн проекта Вам будет проще и легче делать капитальный ремонт на 100%.
Также мы практикуем удаленный капитальный ремонт квартир в новостройках под ключ БЕЗ непосредственного присутствия заказчиков на объекте. Особенно эта практика популярна в последнее время, когда люди из других городов покупают недвижимость в Москве и просто физически не могут себе позволить проживать несколько месяцев в Москве во время ремонта.
ЗВОНИТЕ ПРЯМО СЕЙЧАС! С УДОВОЛЬСТВИЕМ ОТВЕТИМ НА ВСЕ ВАШИ ВОПРОСЫ!
ПРИМЕР РАБОЧЕЙ ДОКУМЕНТАЦИИ ДИЗАЙН-ПРОЕКТА интерьера квартиры/ дома смотрите ниже:
1) ОБМЕРНЫЙ ПЛАН ИСХОДНЫХ СТЕН:
2) ПЛАН МОНТАЖА ДОПОЛНИТЕЛЬНЫХ ПЕРЕГОРОДОК И ВОЗВЕДЕНИЯ СТЕН:
3) ПЛАН ПОСТРОЕНИЯ НИШ И КОНСТРУКЦИЙ ИЗ ГИПСОКАРТОНА:
4) ПЛАНИРОВОЧНОЕ РЕШЕНИЕ ВЫБРАННОЕ ЗАКАЗЧИКОМ ИЗ 10 ПРЕДЛОЖЕННЫХ ВАРИАНТОВ:
5) ПЛАН ПОТОЛКОВ С РАЗМЕРАМИ:
6) ПЛАН ПОЛОВ с указанием площади:
7) ПЛАН теплого пола с термостатами:
8) ПЛАН ОСВЕЩЕНИЯ С ПРИВЯЗКАМИ:
9) ПЛАН РАСПОЛОЖЕНИЯ ВЫКЛЮЧАТЕЛЕЙ ПО ГРУППАМ ВКЛЮЧЕНИЯ:
10) ПЛАН ЭЛЕКТРИКИ (РАСПОЛОЖЕНИЕ РОЗЕТОК С ПРИВЯЗКАМИ):
Для чего нужен дизайн интерьера: Рабочая документация
Для чего нужен дизайн интерьера.
В предыдущей статье был в деталях рассмотрен этап 3D-визуализации. Мы подробно рассмотрели все составляющие этого процесса: тестовые (черновые) рендеры, предфинальная коррекция, финальные изображения и согласование полученных материалов. Далее нас ожидает не менее важная функция – рабочая документация или рабочие чертежи.
Мы расскажем Вам, что должно входить в рабочую документацию, какие листы в ней должны быть обязательно, а без каких можно обойтись, уменьшив тем самым стоимость рабочего проектирования.
Создание рабочих чертежей подразделяется на несколько последовательных функций.
- ОБМЕРЫ.
- ПЛАНИРОВОЧНОЕ РЕШЕНИЕ.
- ПЛАН МОНТАЖА И ДЕМОНТАЖА ПЕРЕГОРОДОК.
- ПЛАН ДВЕРНЫХ ПРОЁМОВ.
- РАЗМЕЩЕНИЕ МЕБЕЛИ.
- РАЗМЕЩЕНИЕ КУХОННОГО ОБОРУДОВАНИЯ.
- РАЗМЕЩЕНИЕ САНТЕХНИЧЕСКОГО ОБОРУДОВАНИЯ.
- ПЛАН РАЗМЕЩЕНИЯ ЭЛЕКТРИЧЕСКИХ РОЗЕТОК.
- ПЛАН РАЗМЕЩЕНИЯ ТОЧЕК ВЫВОДА СЛАБОТОЧНЫХ СЕТЕЙ.
- ПЛАН ОСВЕЩЕНИЯ ПОТОЛКА.
- ПЛАН РАЗМЕЩЕНИЯ ВЫКЛЮЧАТЕЛЕЙ.
- ПЛАНЫ ПОТОЛКОВ.
- ПЛАНЫ ПОЛОВ.
- ПЛАНЫ ТЁПЛЫХ ПОЛОВ.
- ПЛАН КОНДИЦИОНИРОВАНИЯ.
- РАСКЛАДКА ПЛИТКИ.
- РАЗВЁРТКИ.
- СЕЧЕНИЕ ДЕКОРАТИВНЫХ ЭЛЕМЕНТОВ.
- 3D-ВИЗУАЛИЗАЦИЯ.
- СПЕЦИФИКАЦИИ.
- ПЛАН ШТОР.
Мы также подготовили эту статью в формате видео, которое Вы можете найти в нижней части страницы.
Обозначенные выше составляющие рабочей документации изображаются на отдельных листах чертежей.
Рассмотрим содержание каждого такого листа подробнее.
ОБМЕРЫ
Очень важно при нанесении на чертежи данных по обмерам учесть точные привязки всех инженерных коммуникаций на объекте.
ПЛАНИРОВОЧНОЕ РЕШЕНИЕ
На этом этапе дизайнер получает планировочное решение, которое было выбрано из нескольких вариантов после составления технического задания. Оно в максимальной степени удовлетворяет Вашим функциональным и стилевым предпочтениям, выбранным на предварительном этапе проектирования.
ПЛАН МОНТАЖА И ДЕМОНТАЖА ПЕРЕГОРОДОК
Если техническим заданием был предусмотрен монтаж и/или демонтаж различных перегородок в помещениях, то все эти изменения обязательно должны быть отображены на чертежах.
ПЛАН ДВЕРНЫХ ПРОЁМОВ
Без этого пункта никак не обойтись, даже если все дверные проёмы остаются на своих старых местах..jpg)
РАЗМЕЩЕНИЕ МЕБЕЛИ
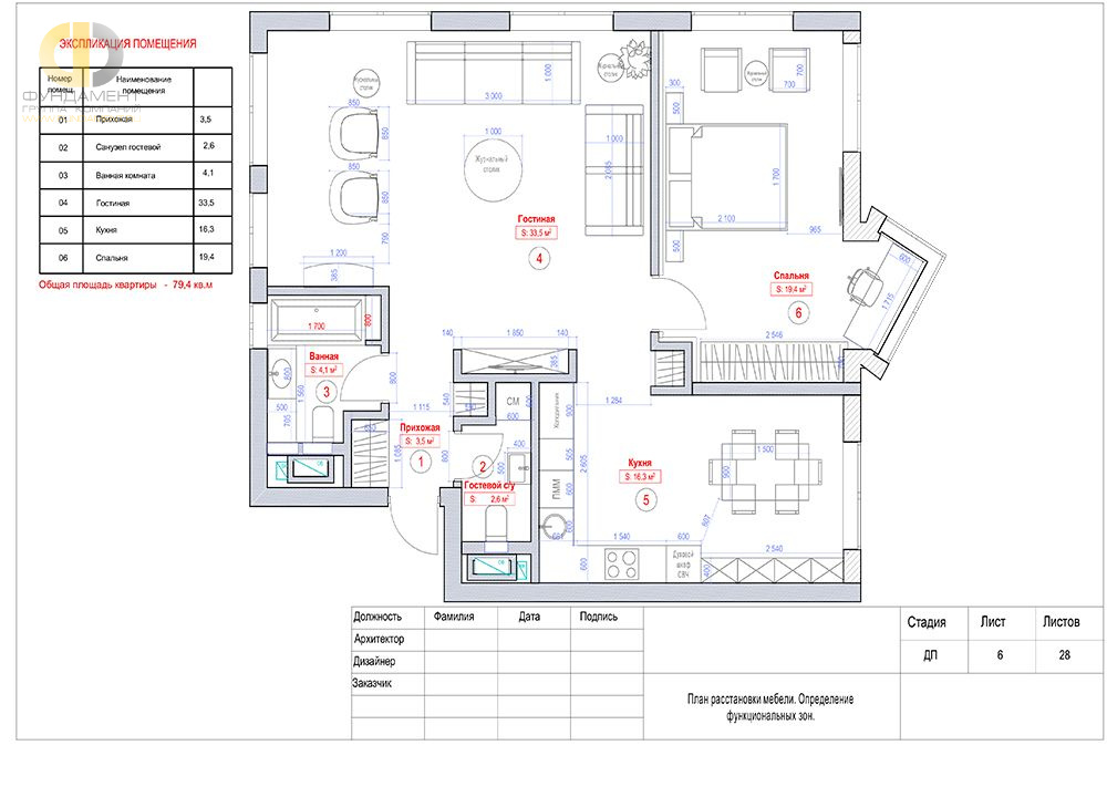
Это самый важный пункт при создании рабочей документации, ведь именно предметы мебели зачастую является основным элементом интерьера жилого помещения. На плане отображается мебель с указанием её габаритов.
При реализации этого пункта также создаётся экспликация. Экспликация – это план Вашей квартиры после перепланировки с наименованием помещений и указанием их площадей. Этот чертеж также может понадобиться при согласовании перепланировки в бюро технической инвентаризации (БТИ).
РАЗМЕЩЕНИЕ КУХОННОГО ОБОРУДОВАНИЯ
Кухонное оборудование размещается с учётом соответствующих требований к монтажу газового и электрооборудования, а также с соблюдением условий естественной и принудительной вентиляции.
РАЗМЕЩЕНИЕ САНТЕХНИЧЕСКОГО ОБОРУДОВАНИЯ
На чертежи наносится вся сантехника с необходимой привязкой на плане.
ПЛАН РАЗМЕЩЕНИЯ ЭЛЕКТРИЧЕСКИХ РОЗЕТОК
От оптимального размещения электрических розеток зависит удобство при использовании электроприборов. Так как их количество постоянно растёт, то количество и доступность розеток очень важны. На плане указывается точное место установки розеток и высота их размещения над уровнем пола.
ПЛАН РАЗМЕЩЕНИЯ ТОЧЕК ВЫВОДА СЛАБОТОЧНЫХ СЕТЕЙ
Слаботочные сети — неотъемлемая часть инженерного оснащения современного жилища. Без них невозможна качественная связь, не работает телевидение, радио, домашняя автоматика, не функционируют удаленные друг от друга компьютеры. Поэтому на отдельном листе плана отображаются также слаботочные розетки. Это телефонные, антенные розетки, розетки домашней локальной компьютерной сети LAN, точки подключения интернета, сигнализации, домофона и т.п.
ПЛАН ОСВЕЩЕНИЯ ПОТОЛКА
На этом чертеже обозначается расстановка с привязкой и размерами всех осветительных приборов, в том числе и скрытой подсветки.
Указываются характеристики светильников (тип, количество ламп, тип освещения, его направленность, яркость).
ПЛАН РАЗМЕЩЕНИЯ ВЫКЛЮЧАТЕЛЕЙ
При размещении выключателей обязательна их привязка на плане. Обозначается также количество клавиш на выключателе. Каждая клавиша включает определенный светильник (или группу светильников), что схематически обозначается на данном плане. Тут же указываются проходные выключатели. Если в функцию выключателя входит плавная регулировка освещённости, это тоже отображается на плане.
ПЛАНЫ ПОТОЛКОВ
Как правило, в любом помещении имеются индивидуальные особенности потолков. Поэтому на каждый объект обычно приходится разрабатывать разрезы отдельных узлов и сечений потолка. Количество листов чертежей будет зависеть от уровня сложности. На планах потолков также обозначаются используемые материалы (штукатурка с окраской, гипсокартонные уровни, натяжной потолок и т.п.) с указанием высот.
ПЛАНЫ ПОЛОВ
На плане полов отображаются типы напольных покрытий и все материалы, которые будут для них использованы (паркет, ламинат с направлением укладки, керамическая плитка, линолеум и т.п.). Указывается также количество требуемых материалов.
ПЛАНЫ ТЁПЛЫХ ПОЛОВ
Полы могут быть обычными и с подогревом. Если объект достаточно сложен, то планы тёплых полов могут выноситься на отдельный лист.
ПЛАН КОНДИЦИОНИРОВАНИЯ
Этот лист дизайнеры не всегда включают в комплект рабочей документации. Для нас это не является проблемой, и мы такой план составляем.
РАСКЛАДКА ПЛИТКИ
Этот очень важный этап мы обязательно изображаем на отдельном листе. На чертеже также указывается, как количество целой плитки, так и порезанной. Это помогает точно определить необходимое количество плитки и подсчитать Ваши расходы на её приобретение.
РАЗВЁРТКИ
Развёртка – это проекция каждой стены, пола и потолка на плоскость в одном установленном масштабе. При этом стены, мебель, дверные и оконные проёмы изображаются в одном выбранном масштабе. Указывается также раскладка плитки, что особенно необходимо при развёртке кухни и санузла. Развёртка помогает нам определить, нет ли наложения мебели, не выступает ли она за нишу, не закрывает ли батарею, не заслоняет ли оконный проём, помещается ли диван и шкаф вдоль одной стены, не перекрывается ли доступ к розеткам и выключателям. Есть возможность также оценить эргономику: удобно ли жильцам с их ростом открывать дверцы подвесного шкафа, дотянется ли ребёнок до выключателя и т.д.
СЕЧЕНИЕ ДЕКОРАТИВНЫХ ЭЛЕМЕНТОВ
Если стены или потолки имеют декоративные элементы, то на чертежах отдельно выполняется их сечение. От сложности декоративных элементов будет зависеть количество листов чертежей.
3D-ВИЗУАЛИЗАЦИЯ
В итоге мы с Вами получаем 3D-визуализацию, но уже не в цветных картинках, а в грамотно оформленных чертежах.
СПЕЦИФИКАЦИИ
Этим пунктом предусматривается спецификация мебели, полов, сантехники и т.д. Часто заказчики, пытаясь сэкономить, не включают спецификации в комплект рабочей документации, рассчитывая на то, что этой работой будет заниматься комплектатор (о работе комплектатора Вы подробнее узнаете из других наших статей этого цикла). Мы же считаем, что без спецификации проект интерьера не будет полностью реализован в том виде, в котором его задумал дизайнер интерьера. Поэтому настоятельно рекомендуем включать спецификации в Ваш пакет рабочей документации.
ПЛАН ШТОР
Этот пункт рабочей документации мы ввели совсем недавно и, исходя из нашего опыта, считаем его очень важным. Дело в том, что шторы, как правило, занимают пространство 10-20 см от стены. Если не учитывать этого, то можно получить ошибочное решение, когда, например, шторы на кухне находит на рабочую столешницу или ложится на край спинки дивана в гостиной.
Поэтому мы рекомендуем план штор прорабатывать заранее и создавать для штор специальные «карманы».
Многие считают, что всю эту работу должен выполнять Ваш дизайнер интерьера. Мы считаем иначе. Дизайнер интерьера может не знать все спецификации и артикулы, которые на данный момент есть у производителей на рынке. Он также может не ориентироваться во всех сечениях и узлах, которые есть у какой-то конкретной строительной бригады. Также проблемой для него может быть выбор тёплых полов среди большого их разнообразия на рынке. Мы считаем, что главной задачей дизайнера интерьера является поиск баланса между эстетикой и функцией при создании дизайн-проекта. Технической стороной проекта должен заниматься отдельный специалист, который хорошо разбирается в чертежах и знает установленные нормы и стандарты. Поэтому в нашей студии этим занимается архитектор со специальным высшим образованием. Такой подход помогает нам минимизировать количество ошибок на этапе реализации проекта дизайна интерьера Вашего жилища.
В результате нам не приходится ничего переделывать заново. А это позволит Вам не тратить лишнее время и деньги, а также сберечь нервы.
В итоге Вы получите пакет чертёжной документации, составляющие части которого были описаны выше. Мы рассмотрели с Вами общую схему создания технической документации с наиболее типичным перечнем чертежей и листов. Но, учитывая, что любой объект проектирования индивидуален и уникален, мы в каждом конкретном случае можем прорабатывать некоторые дополнительные пункты технической документации.
Закончив разработку пакета чертежей, мы завершаем ранее подписанный с Вами договор на создание дизайн-проекта. Далее мы переходим к практической реализации проекта. Проведение этих работ можно условно поделить на 3 направления. О каждом из них мы расскажем в следующих статьях нашей подборки.
Итак, дальше мы подробно рассмотрим авторский и технический надзор в статье «Реализация проекта.
Часть 1». Вы узнаете, из каких функций состоит этот процесс, чем отличаются друг от друга авторский и технический надзоры, в чём состоит их взаимодействие со строительной бригадой и подрядчиками.из чего состоит дизайн-проект интерьера
Вы стали обладателем новой квартиры или решили кардинально переделать уже имеющуюся жилплощадь, но не знаете, как лучше это сделать? Наиболее логичным и правильным решением будет обратиться к специалисту-дизайнеру. Опытный дизайнер не только поможет определиться с цветовым и стилевым решением декорирования квартиры, предложит оригинальные идеи и сможет гармонично соединить пожелания всех членов семьи, но и решит важные вопросы перепланировки, подбора отделочных материалов, расположения осветительных приборов, зонирования квартиры, подготовит план расстановки мебели.
Если у вас нет опыта общения с дизайнерами, легко заблудиться в массе предлагаемых вариантов и в итоге получить вовсе не тот результат, на который вы рассчитывали, обращаясь к специалисту.
Разумеется, общение клиента и дизайнера очень индивидуально и имеет свои нюансы в каждом рассматриваемом случае, однако некие общие моменты выделить все-таки можно. Из каких основных этапов должно складываться ваше конструктивное общение с дизайнером, и какие чертежи и визуализации вы должны получить в итоговом дизайн-проекте интерьера (состав дизайн-проекта)? Сначала разберемся с терминологией.
Дизайн-проекты интерьера отличаются набором документом, которые в них входят, то есть состав дизайн-проектов может быть разным. Поэтому сразу стоит оговорить, что нужно именно вам, и сколько это будет стоить такого рода работа. Если вы собираетесь делать ремонт самостоятельно и просто нуждаетесь в советах по декорированию интерьера, нужен план расстановки мебели, вам достаточно будет, так называемого, эскизного проекта. Он не содержит точных чертежей и расчетов, так что переносить стены, делать ниши и другие точные работы по нему нельзя, однако для выбора цветовой гаммы и общей стилистики помещения его вполне достаточно.
Тип дизайн-проекта
Стандартный дизайн-проект интерьера
Стандартный дизайн-проект содержит необходимые для проведения ремонта чертежи, а так же выполненные от руки или в графическом редакторе общие визуализации будущего интерьера. Это наиболее распространенный вариант подачи дизайн-проекта и подходит, как для понимания общего вида интерьера, так и для того, чтобы передать его в работу строителям и ремонтниками. Возможно, в таком проекте будет отражены не все мелкие детали обстановки, а аксессуары будут иметь схематичный внешний вид и расположение, но общее представление об их внешнем виде вы получите.
Полный дизайн-проект интерьера
Полный дизайн-проект нужен, если вы хотите максимальной конкретики, и дотошно относитесь к каждой детали. В смете к проекту будут указаны конкретные марки отделочных материалов и артикулы мебели, которая будет использована в проекте, к каждому помещению в доме будет приложена трехмерная визуализация и развертка всех четырех стен, по необходимости.
В таком проекте каждый сантиметр площади будет тщательно проработан и представлен вам.
Авторский надзор
Если вы хотите, чтобы дизайнер не только разработал концепцию интерьера, но и следил за ходом выполнения работ, а также самостоятельно или с вашим участием подбирал отделочные материалы, мебель и аксессуары в магазинах и салонах, значит, помимо дизайн-проекта, вам следует договориться и об авторском надзоре с его стороны. Авторский надзор подразумевает, что в ходе ремонта дизайнер регулярно будет контролировать строителей, проверять качество их работы и соответствие результата изначальному проекту. Оговаривается и оплачивается авторский надзор отдельно, чаще всего на почасовой основе.
Теперь перейдем непосредственно ко входящим в дизайн-проект документам и этапам вашего общения с дизайнером.
Состав дизайн-проекта
Техническое задание
Вы время вашей первой встречи дизайнер должен выяснить все ваши пожелания и особенности помещения, бюджет и другие детали, которые и лягут в основу технического задания по проекту.
Помните, что интерьер должен соответствовать не только вашим вкусовым предпочтениям, но и образу жизни, планам на будущее и составу семьи. Важно максимально подробно и искренне отвечать на вопросы, задаваемые дизайнером, ведь от этого будет зависеть ваш личный комфорт в будущем.
Если вы придерживаетесь формального подхода, техническое задание может быть оформлено в письменном виде. Это поможет и вам, и дизайнеру избежать возможного недопонимания в будущем. Обычно дизайнер составляет техническое задание, в которое входят все оговоренные вами пожелания, и дает вам его на подпись.
Обмерочный план
Дальше дизайнер должен познакомиться с объектом работы и сделать точные замеры помещения. ПИБовский план, который наверняка есть у вас на руках, обычно неточен и не содержит всех необходимых размеров, которые должны быть максимально детальными.
Вторым, после технического задания, документом, входящим в стандартный дизайн-проект, будет именно обмерочный план, включающий в себя точные размеры всех выступов, проемов и привязок по высоте.
Планировочное решение
Возможно, наиболее важная часть дизайн-проекта, на обсуждение которой обычно уходит достаточно продолжительное время. Такой план включает в себя перепланировку, если таковая необходима, и расстановку мебели. Дизайнеры в работе над проектом учитывают как ваши пожелания, так и собственные знания эргономики, функционального зонирования помещений, требования СНИПов и творческую фантазию.
Обычно дизайнер предоставляет от 3 до 10 возможных вариантов планировки, на основе которых вы приходите к оптимальному варианту.
Вариант планировки и эскиза кухни и рабочего кабинета в коттедже
Стилистический коллаж
Необязательная, но наглядная часть дизайн-проекта, позволяющая конкретизировать цветовое и стилевое решение будущего интерьера. Как правило, коллаж делается для каждого помещения отдельно и включает в себя примерный вид мебели, подбор отделочных материалов и аксессуаров, на которые будет ориентироваться в работе над проектом дизайнер.
Вы можете показать дизайнеру фото из журналов или Интернета, вдохновляющих вас интерьеров, чтобы ему было проще понять ваши предпочтения. Такие изображения и могут лечь в основу коллажа, который может быть выполнен, как из бумаги, так и на компьютере.
Стилистический коллаж интерьера гостиной, сделанный на компьютере
План расстановки мебели и монтажные планы
Когда соглашения по расстановке мебели и перепланировке достигнуты, дизайнер продолжает работу именно с этим, утвержденным вами, вариантом планировки. В полный дизайн-проект должны войти план с выбранной вами расстановкой мебели. Кроме него, проект должен содержать план перепланировки со всеми размерами возведенных заново перегородок и ниш, если такие решения будут присутствовать в проекте; план раскладки напольных покрытий (может быть совмещен с планом расстановки мебели), указывающий как именно будет лежать на полу плитка, паркет или ламинат. Если в проекте присутствуют сложные, многоуровневые потолки, план потолков с размерами и высотами всех конструкций также обязателен.
Именно на него в работе будут ориентироваться строители.
План трехкомнатной квартиры после перепланировки с указанием размеров
План установки электрических устройств
Этот план содержит расположение всех выключателей, розеток, люстр, бра, теплых полов и напрямую связан с планом расстановки мебели. Электрики, обычно приступающие к работе в новом доме в числе первых, потребуют этот план в обязательном порядке, так как именно ориентируясь на него, они будут производить разводку проводов и другие технические работы.
Затягивая утверждение итоговой планировки, вы, тем самым, тормозите работу строителей. Ведь только точно зная, где точно будет находится рабочий стол или кровать, можно понять, куда выводить провода для настенных бра или планировать дополнительных розетки.
План расстановки оконечных электрических устройств и расположения теплых полов в трехкомнатной квартире
Чертежи нетиповых деталей
Если в дизайн-проекте присутствуют встроенные полки, ниши, арки, камин или другие сложные конструкции, к ним должны прилагаться отдельные чертежи с указанием всех размеров.
Эти детали лучше оговаривать заранее как с дизайнером, так и с прорабом, чтобы воплощение в реальность всех изысков фантазии вас не разочаровало, как в визуальном, так и в финансовом плане.
Чертежи стены со встроенными гипсокартонными полками и каминной нишей
Эскизное решение
Параллельно с решением технических деталей проекта обычно идет согласование и его эстетической части. Вместе с планом расстановки мебели дизайнер обычно предлагает несколько эскизных набросков внешнего вида будущего интерьера на основе составленного стилистического коллажа. Выполнены они могут быть как от руки, так и на компьютере.
Эскизное решение интерьера кухни, сделанное от руки
Стилистический коллаж и эскизное решение интерьера магазина
Трехмерная визуализация интерьера
После того, как вы утвердили план перепланировки и выбрали понравившиеся эскизы, дизайнер обычно преступает к более тщательной проработке внешнего вида интерьера.
Количество и качество визуализации оговаривается заранее и индивидуально, ведь за каждой 3D-картинкой стоит серьезный и кропотливый труд, который тоже должен быть соответственно оплачен.
По-настоящему качественная трехмерная визуализация позволяет не только увидеть помещения в разных ракурсах, в подробностях рассмотреть выбранную мебель и отделочные материалы, а также понять, как в помещение будет распространятся свет. Она очень важна для правильного подбора и расстановки светильников и помогает выбрать подходящие интерьерные аксессуары, начиная от текстиля, заканчивая предметам искусства.
Простая визуализация офисного пространства, сделанная на компьютере
Рабочая документация
Если вы решили заказать полный дизайн-проект, в него должны войти сводные ведомости отделочных материалов, мебели и осветительных приборов, входящих в проект.
Обычно, сводная ведомость представляет собой таблицу отдельно по каждому помещению, в которую включены название, точное количество, артикул и адрес возможного места приобретения подходящих для данного интерьера настенных, напольных и потолочных покрытий, мебели и светильников.
В смету дизайн-проекта включаются только отделочные материалы, строительные смеси и другие стройматериалы обсуждаются, как правило, с прорабом и находятся в его компетенции.
Дизайн-проект в итоговом виде представляет собой папку со всеми чертежами и визуализациями, позволяющую строителям возвести необходимые конструкции, а вам без лишнего труда выбрать все отделочные материалы и предметы обстановки. Вам не придется долго искать подходящие обои для кухни или люстру для гостиной — вся эта информация уже содержится в вашем дизайн-проекте. Если же вы захотите избавить себя от хлопот, связанных с контролем за работой строителей и заказом материалов, смело соглашайтесь на авторский надзор со стороны дизайнера, чтобы быть уверенным, что интерьер в реальности получится точно также, как на картинке или даже лучше!
Интерьерная визуализация / Рабочая документация / Дизайн интерьера
Навыки:
3ds MAX / Corona renderer / PS / ArchiCAD
Образование:
Высшее / ТГАС / Художник по проектированию интерьеров и оборудования
Дополнительная информация:
В сфере дизайна интерьеров с 2005.
Начинала с разработки рабочей документации. С 2011 работала в Мебельном производстве, знаю о мебели все. Готова к долгосрочному сотрудничеству в сфере визуализации интерьера, разработки дизайна интерьера и рабочей документации.
—
Соблюдаю сроки
Внимательна к деталям
На связи 9:00 — 18:00 МСК
В пределах разумного подстроюсь под ваш часовой пояс.
—
ВИЗУАЛИЗАЦИЯ ИНТЕРЬЕРА:
Современные стили — 350р/м2
Неоклассика и схожие — 450р/м2
Барокко и схожие — 800р/м2
Помещения менее 10м2 вне состава проекта — 6000р
—
В стоимость включено
2 круга правок без изменения концепции помещения
2-4 ракурса на помещение
Простое моделирование (встроенная корпусная мебель)
—
Что мне нужно в ТЗ
План расстановки мебели (dwg/pln/)
План оформления потолка / расстановки осветительных приборов
Развертки с подробными сведениями о расположении молдингов, светильников, элементов декора и пр.
Подборка мебели, светильников, декора, текстиля и пр.
—
РАБОЧАЯ ДОКУМЕНТАЦИЯ:
— Разрабатываю только по своему дизайну или по визуализации, которую делала Я.
— Цена от 300 руб/м2
— Комплект чертежей состоит из :
—Обмерный план
—План монтажа
—План демонтажа
—План расстановки мебели
—План расположения осветительных приборов
—План расположения розеток и выключателей
—План расположения кондиционеров / радиаторов
—План теплого пола
—План пола / потолка
—Развертки стен по всем помещениям
—Объем отделочных материалов указываю на планах
—Подборка мебели, отделки и светильников с ссылками оплачивается отдельно, по-договоренности.
————————————————————————————
Дизайн Интерьера :
-Создаю концепцию будущего интерьера с учетом пожеланий заказчика
-Предлагаю планировку с расстановкой мебели (2-3 варианта на выбор)
-Подбираю отделку, мебель, свет и декор исходя из бюджета заказчика
-Создаю визуализацию по каждому помещению (несколько ракурсов)
-Разрабатываю проектную документацию для воплощения задуманного)
-Согласовываю с заказчиком
-Стоимость от 1700 руб /м2
Важно:
-Работаю исключительно по предоплате.
Оплата проходит этапами: 50/50, 40/40/20 или индивидуально исходя из ТЗ.
проект в категории Интерьеры, 01.09.2016 в 13:08
Бесплатно зарегистрируйся и получай уведомления о новых проектах по работе
S | Заказчик Отзывы фрилансеров: + 4 0 — 0 Зарегистрирован на сайте 6 лет и 5 месяцев | Бюджет: по договоренности |
Необходимо выполнить рабочий проект интерьера квартиры, площадью.
64 м2
Рассматриваются кандидаты с опытом разработки рабочей документации для дизайн проекта.
Оставляйте свои предложения с указанием примерной стоимости, сроков и примером ранее выполненной рабочей документации. Свое предложение начинайте со слов » Интересное предложение» и далее ваше предложение.
Во вложении планировочное решение и визуализации.
Разделы:
Опубликован:
01.09.2016 | 13:08
Теги: создать интерьер, нужен дизайнер интерьера, лучшие дизайнеры интерьера, создать интерьер комнаты, ищу дизайнера интерьера, сделать дизайн интерьера
Дизайн проект
РАЗРАБОТКА ДИЗАЙН ПРОЕКТА ИНТЕРЬЕРОВ – СТАДИИ
Выполнение дизайн проекта офиса, ресторана или квартиры – это разработка интерьерных решений и оптимизация внутреннего пространства помещений с учетом технологических, пожарных и санитарно-эпидемиологических требований в проектировании и строительстве.
Дизайн проекты выполняются проектировщиком (генпроектировщиком) на основании технического задания, а также на базе архитектурно-строительных планировок или архитектурной концепции. Разработать дизайн проект можно в несколько стадий. Первой стадией может являться архитектурная концепция, включающая основные планировочные и инженерные решения (эскизный дизайн проект). Второй стадией является архитектурная деталировка внутрипространственных решений, а также увязка всех инженерных разделов дизайн проекта. Третьей стадией выполнения дизайн проекта может являться визуализация (3-D моделирование) принятых проектных решений в части архитектуры и внутренних инженерных систем.
ДИЗАЙН ПРОЕКТ ИЛИ «ПРОЕКТНАЯ ДОКУМЕНТАЦИЯ»?
Так, что же взять за основу, выполняя проект бизнес центра, офиса или склада, проект торгового комплекса, МФЦ или гостиницы? Ответ найдем в градостроительном кодексе: в случае выхода проекта жилого или общественного здания на экспертизу, необходимо выполнение проектной документации.
И это не исключает возможное выполнение дизайн проекта интерьера, но уже в ходе выполнения рабочей документации. Вообще, дизайн проект в том или ином виде может служить основой, если выполняем рабочий проект помещений офисов, торговых центров, МФЦ или МФК, помещений спортивного комплекса или гостиницы. Генеральное проектирование гостиничного комплекса, ресторана или оздоровительного центра предполагает выполнение дизайн проекта («ДП»), проектной и рабочей документации («ПД», «РД»), а также получение исходно-разрешительной документации и согласований. Также, получение ИРД и согласований проекта можно выделить в отдельный вид деятельности в области архитектурно-строительного проектирования — проектный инжиниринг или выполнение функций заказчика проектирования и строительства.
ГЕНПРОЕКТИРОВАНИЕ В РАМКАХ ВЫПОЛНЕНИЯ ДИЗАЙН ПРОЕКТА ИНТЕРЬЕРОВ (ЭКСТЕРЬЕРОВ)
Выполнение дизайн проекта генпроектировщиком — это важнейший аспект архитектурного и строительного проектирования, в виду комплексного подхода к реализации функций заказчика.
В этой связи, дизайн проект гостиницы, склада или паркинга может являться, как концептуальными архитектурно-строительными проектными решениями, так и рабочей документацией учитывающей деталировки интерьеров, экстерьерные решения фасадов и входной группы, а также узлы архитектурного раздела. Также, выполнение генеральным проектировщиком визуализации интерьеров и архитектурных решений фасада позволяет правильно спланировать дальнейший проект торгового центра, общественно-делового или производственно складского комплекса.
КАК РАЗРАБОТАТЬ ДИЗАЙН ПРОЕКТ, ВЫПОЛНЯЯ АРХИТЕКТУРНЫЙ ПРОЕКТ ТОРГОВОГО ЦЕНТРА ИЛИ БИЗНЕС ЦЕНТРА
При выполнении проектов торговых центров и многофункциональных комплексов, зачастую, необходима разработка дизайн проектов интерьеров входных групп и мест общего пользования, а также дизайн проект ресторанов или спортивного комплекса, в составе проектируемых ТРК и МФЦ. Выполнить дизайн проект встроенных помещений или зон торгового комплекса (бизнес центра или МФК) необходимо на основании ТЗ Заказчика проектирования и строительства, а также на базе архитектурной концепции.
Так, как проект бизнес центра может состоять из проектов встроенных помещений магазина, спортивного центра, ресторана, спа комплекса и административных площадей, то существует необходимость организовать выполнение дизайн проекта; и для этого Заказчик проектирования привлекает опытного генпроектировщика способного разработать дизайн проект, в ходе выполнения комплексного архитектурного проектирования. Дизайн проект — это комплекс архитектурных решений, которые разрабатывает генпроектировщик, выполняющий инжиниринг.
ИНЖИНИРИНГ И РАЗРАБОТКА ПРОЕКТА АРХИТЕКТУРНОГО ДИЗАЙНА
Инжиниринг и архитектурное проектирование подразумевают разработку дизайн проекта интерьеров и экстерьеров (фасады, 3-D визуализация) здания торгового центра, бизнесцентра, офиса, ресторана или гостиницы. Проектная деятельность и проектная работа по разработке строительного проекта, а также архитектурного проекта жилых или общественных зданий, может выполняться в составе комплексного инжиниринга т.е.
с выполнением функций заказчика проектирования и строительства. Архитектурное проектирование и разработка рабочей документации, также могут выполняться в составе дизайн проекта дома, спортивного комплекса или торгового центра. Также, при разработке проекта завода (производственного здания) или выполнении проекта склада, возможна проектная работа по выполнению дизайн проекта проходной, входной группы или офисных (административных) помещений.
Клиентский процесс Документы, которые вам нужны как дизайнеру интерьера
В сфере услуг, такой как дизайн, качество обслуживания клиентов — это все. От начального охвата до финального отпуска каждому дизайнеру нужен непрерывный процесс, чтобы впечатлять клиентов на каждом шагу. Возможно, вы уже разработали руководство по инвестициям, чтобы помочь в поиске новых запросов, но на этом работа не заканчивается. После того, как вы подписались на нового клиента, пора продолжить демонстрировать свой бренд.
Вот почему мы создали приветственное руководство Билли и Ли, руководство по инвестированию и шаблоны Goodbye Packet, которые теперь доступны для покупок по отдельности или в комплекте в IDCO Studio.
Эти настраиваемые шаблоны для дизайнеров интерьера выполняют множество функций, например, устанавливают ожидания, делятся временными рамками и сообщают, чего ожидать на каждом этапе пути. Эти материалы являются не только ключевой частью процесса обучения клиентов, но и одним из САМЫХ БЫСТРЫХ способов вывести ваш бренд на новый уровень.
Шаблон приветственного руководства Билли
Элементы инвестиций + приветственное руководство
Инвестиционный справочник — это документ двойного назначения, который каждый дизайнер должен иметь под рукой для отправки потенциальным клиентам.Когда вы получаете запрос, вам нужно ответить таким образом, чтобы привлечь потенциальных клиентов и отсеять остальных. Предоставление этой информации заранее является преимуществом для потенциальных клиентов, но также позволяет сэкономить время для вас и ваших сотрудников, так что ваше драгоценное время будет потрачено на проектирование, а не на ответы на вопросы по электронной почте.
Затем, когда вы подписались на нового клиента, пора сразу приступить к работе, не так ли? Не так быстро. Прежде чем проект официально начнется, важно тепло приветствовать клиента и заверить его, что его дом находится в надежных руках.Хотя это требует некоторой работы, создание приветственного руководства — это готовый документ, который дает вашим клиентам представление о том, чего ожидать, и на это они могут постоянно ссылаться на протяжении всего проекта.
Чтобы максимально упростить этот процесс, мы создали Инвестиционные и приветственные руководства Ли и Билли, которые можно полностью адаптировать к вашему бренду. Наши документы предоставляются в виде редактируемого шаблона Canva с готовой копией, готовой произвести впечатление.Для максимального удобства и простоты приобретайте их отдельно или в комплекте в виде набора из трех документов.
Дизайн интерьера: CC + Em Interiors
Наши шаблоны инвестиционного гида включают:
- Крышка
- Титульные страницы раздела
- Введение или страница отзыва
- Услуги + Пакеты Страница
- Страницы схемы процесса проектирования
- Рекомендации по обмену данными Страница
- Страница информации о платежах
- О странице
- Страница благодарности
- Контактная страница
Наши шаблоны приветственного руководства включают:
- Тщательно обработанная копия ждет вашей персонализации
- Заглавная страница
- Содержание
- Титульные страницы раздела
- Знакомство с командой Страницы
- График выставления счетов, страница
- Страница информации о платеже
- Чего ожидать Страница
- Часто задаваемые вопросы Страница
- Страница благодарности
- Контактная страница
Шаблон приветственного руководства Leigh
Элементы прощального пакета
Первые впечатления важны, но именно последние впечатления превращают разовые проекты в повторяющийся бизнес.
В рамках процесса подведения итогов мы настоятельно рекомендуем отправить вашим клиентам прощальный пакет, который является одновременно выражением сердечной благодарности и предлагает следующие шаги для совместной работы в будущем.
Помня об этих двух ключевых целях, мы создали пакеты The Leigh и Bille Goodbye Packet, чтобы сделать процесс увольнения очень известным. Каждый из наших прощальных пакетов разработан как полностью редактируемый шаблон Canva, включая формальные прощальные пожелания, инструкции по уходу, следующие шаги и профессиональную копию, все в 12-страничном документе.Как и другие материалы, обрабатываемые нашими клиентами, The Goodbye Packet полностью редактируется в соответствии с цветами и стилем вашего бренда.
Дизайн интерьера: Oakstone Homes | Фотография: Лорен Конрад
Наши шаблоны пакетов Goodbye включают:
- Тщательно обработанная копия ждет вашей персонализации
- Заглавная страница
- Страница благодарности
- Раздел Обложка Страница
- Гарантия на продукт Использование страниц
- Страницы с инструкциями по уходу за продуктом
- Как работать вместе после завершения
- Спасибо + Контактная страница
Дизайн: Стефани Штейн | Фотография: Jenna Peffley
Пакет клиентского процесса
Если вы хотите еще больше упростить документацию о своем бренде, мы создали пакет клиентских процессов специально для вас.
Этот набор из трех частей (доступен как в The Leigh, так и в The Billie) включает в себя наши инвестиционное руководство, приветственный комплект и шаблоны Goodbye Packet. Эти полностью редактируемые шаблоны Canva для дизайнеров интерьера представляют собой многостраничные документы, которые проводят клиентов через весь процесс дизайна на красиво оформленных страницах. Нам нравится сочетание всех трех, чтобы ваши клиенты получали одинаковый практический, безупречный опыт от начала до конца. Чтобы начать, зайдите в магазин IDCO Studio.
Пакет «Прощай Билли»
Дополнительные советы по продвижению вашего интерьера или стиля жизни бренда можно найти в этих публикациях:
IDCO Studio — это креативная студия полного цикла для дизайнеров интерьеров и брендов в стиле бутик.Предлагая индивидуальный брендинг, веб-дизайн и создание контента для социальных сетей, мы помогаем брендам, основанным на красивой жизни, повысить свое цифровое присутствие, чтобы представить физические пространства, которые они проектируют.
Наши недавно выпущенные шаблоны веб-сайтов с ограниченным выпуском — идеальный способ для дизайнеров интерьера получить роскошный веб-сайт с ограниченным бюджетом. Эти шаблоны позволяют дизайнерам контролировать свой контент. Хотите работать вместе? Отправьте нам запрос здесь.
Значение внутренней строительной документации
Внимание к деталям.Где мы раньше слышали эту фразу? Что ж, им руководствуется каждая строительная компания, составляя внутреннюю строительную документацию. Этот набор архитектурных строительных чертежей является катализатором в процессе принятия решений.
Нажмите здесь Давайте поговорим!
Этот чертеж включает планы мебели, планы потолков, фасады и т. Д. Каждый элемент интерьера исчерпывающе прорисован. BluEntCAD считает, что внутренняя строительная документация абсолютно необходима для любого строительного проекта.
Почему важна внутренняя строительная документация?
Передача концепции дизайна клиентам чрезвычайно актуальна.
Именно здесь на помощь приходят строительные чертежи . Они помогают выделить мельчайшие детали в интерьере, которые могут показаться незначительными, но могут добавить огромную ценность проекту.
Специалисты BluEntCAD говорят о ровной текстуре пола или о том, что краска, нанесенная на стены, может оказать сильное влияние. Эти мелкие детали включены в строительную документацию для интерьеров .Представьте, что вам нужно снести окна или увеличить ширину потолка. Вы бы не захотели выложить огромную сумму за эту модификацию, не так ли?
Таким образом, рабочие чертежи и сложные детали интерьера играют огромную роль в успехе любого строительного проекта.
Закулисное повествование строительных чертежей интерьеров
Итак, что на самом деле стоит за созданием этой внутренней строительной документации. Давайте посмотрим, какие детали добавляют профессионалы BluEntCAD в строительную документацию.
Планы этажей: Планы этажей, также называемые планами мебели, разработаны, чтобы прояснить, где мебель будет размещена в данном пространстве. Конечно, этим делятся с клиентами, чтобы дать им более «визуальное» представление о том, как будет выглядеть конкретная комната в доме или офисе. Есть один комплект документов, который содержит самые технические детали, такие как размеры, примечания и символы. Эти детали гарантируют, что строительство будет выполнено эффективно и с минимальными ошибками!
Отметки: Строительные чертежи высот включают высоту мебели и приспособлений.Он даже дает технические подробности о других встроенных модулях.
План потолка: Основная часть интерьеров, которая определяет высоту комнаты по отношению к размещению основных приспособлений, таких как светильники, спринклеры, столярные изделия и т. Д. Размещение чрезвычайно важно и должно быть синхронизировано с другими компонентами в космос.
Разделы и детали: В документе по внутреннему строительству профессионалы из разделов BluEntCAD определяют внутреннюю работу пространства в «секциях», тогда как в «деталях» они предоставляют более исчерпывающее объяснение различных компонентов в комнате.Представьте себе самую мельчайшую деталь в комнате — может быть, встроенную книжную полку из мрамора или плитки? Эти элементы более подробно показаны во внутренней строительной документации, чтобы прояснить дизайн и узоры, используемые на конкретных продуктах.
Расписания: Дизайнеры BluEntCAD готовят исчерпывающий список мебели, отделки и оборудования (FF&E). Он включает в себя множество приборов или красок и т. Д., А также разработанные графики демонстрации, где именно они должны быть размещены, применены или установлены.
Электрические схемы: Любая электрическая проводка, которая должна быть выполнена в офисе или дома, должна быть упомянута в строительных чертежах. Это крайне важно для тех, кто участвует в строительном проекте, чтобы получить более глубокое представление о розетках и выключателях света, которые могут использоваться электриками.
Таким образом, бесчисленное количество планов, фасадов и графиков объединяются и помогают команде дизайнеров и архитекторам создать великолепный набор строительной документации для интерьеров .Этот набор планов также будет включать в себя самые технические и мелкие детали, такие как производитель, цвет, количество, стоимость, размеры, размещение в пространстве. Он также будет включать любую другую информацию, такую как требования к характеристикам и безопасности, которые абсолютно специфичны для этого продукта.
Заключение
Итак, это то, что могут предоставить опытные дизайнеры и команда. Их цель — обеспечить «идеальную отделку» независимо от того, с каким проектом они работают. Ключевые элементы, которым придается первостепенное значение, — это точность, качество и время.Разработка внутренней строительной документации требует значительного времени.
Такая детализация помогает снизить количество ошибок при покупке или установке определенного продукта. Подключитесь к BluEntCAD, чтобы получить лучшие дизайнерские решения САПР и ценный набор внутренней строительной документации.
Максимальное значение. Достигнуто.
Документация по дизайну интерьера магазинов и офисов
Чтобы обеспечить наилучшие шансы воплотить в жизнь дизайн вашего офиса или магазина, специалист по дизайну интерьера может разработать и работать с подробным документом по программированию дизайна интерьера .Этот документ является результатом всестороннего сотрудничества между клиентом и командой проектировщиков и строителей, и он может помочь создать рабочее пространство, которое позволит вам вести бизнес с максимальной производительностью. Свяжитесь с профессионалами Ultimate Chippy сегодня, чтобы получить подробную документацию по дизайну интерьера магазина или офиса, которая облегчит гладкую и беззаботную отделку в Мельбурне.
Подробный документ, который направляет проект от начала до конца
Когда вы нанимаете Ultimate Chippy для наблюдения за дизайном вашего офиса или магазина , , вы можете быть уверены, что проект будет завершен с минимальными усилиями и хлопотами благодаря тщательности нашей документации по дизайну интерьера .Мы следуем строгому многоэтапному процессу, чтобы не упустить ни одной детали, большой или малой. Этот процесс выглядит следующим образом:
- Техническое задание и программирование — Отправная точка дизайна интерьера вашего офиса или магазина, первый шаг предполагает, что мы поговорим с вами, чтобы определить ваши требования (технические и нетехнические), ваши симпатии и антипатии, а также предполагаемое использование место на рабочем месте.
- План этажа — Начиная с первоначального обсуждения, мы создадим и изменим исходный план этажа, пока не найдем правильный баланс между удовлетворением ваших потребностей и созданием функционального и удобного рабочего пространства.
- Эскизы — После составления плана этажа мы создадим полный эскиз рабочего места, включая трехмерные элементы, чтобы вы могли увидеть предполагаемый готовый дизайн.
- Решения по материалам и мебели — После того, как функциональные элементы дизайна будут окончательно определены, мы проконсультируем вас по мебели и декору офиса.
- Световой дизайн и 3D визуализация — Заключительный этап разработки проектной документации интерьера перед началом работ — создание функционального светового дизайна.
Ничего не оставляя на память или на случай
Подобно тому, как художник раскадровки создает раскадровку сцены для кинопроизводства или рекламной кампании, а шеф-повар детализирует каждый ингредиент и метод приготовления их фирменного блюда, документ о дизайне интерьера и оснащении предоставляет специалистам по строительству рабочую документацию, которая позволяет им выполнить задание, не оставляя вещей на память или случайность. Если вы когда-нибудь задумывались, как спланировать планировку офиса, убедитесь, что вы делаете это с опытом Ultimate Chippy.
Процесс проектирования— Как работать с дизайнером интерьера —
Вы когда-нибудь работали с дизайнером интерьеров?
Возможно, вы работали с дизайнером интерьеров в прошлом, а может и нет. Цель этого блога — помочь вам понять процесс работы с нами, дизайнерами интерьера, когда мы создаем план ремонта или помогаем вам спроектировать дом вашей мечты.
По своему опыту я обнаружил, что function и style являются ключевыми факторами в создании красивых дизайнов.Независимо от размера проектов, сам процесс проектирования применим ко всем нашим проектам здесь, в районе Сиэтла. Преобразуем пространства с помощью функции + стиля .
В зависимости от объема работы процесс проектирования может включать дополнительные шаги, например, привлечение инженера-строителя или архитектора, когда мы имеем дело с несущими стенами. Цель этого блога — дать вам общее представление о нашем процессе проектирования, не вдаваясь в технические детали, которые могут варьироваться в зависимости от объема и размера проекта.
Пять этапов нашего процесса дизайна интерьера:
- Стратегическое планирование и программирование
- Разработка концепции
- Разработка дизайна
- Строительная документация
- Строительное управление
5 шагов нашего процесса проектирования (Источник: Interior Visions, llc)
1. Стратегическое планирование
Первая часть процесса проектирования — это встреча с клиентом на стройплощадке, чтобы сделать пошаговое руководство и познакомиться друг с другом.У нас, дизайнеров интерьеров, очень личные отношения с нашими клиентами. Мы узнаем о вашей семье, ваших домашних животных, о том, что вы делаете в своем доме, о том, что вам нравится, о том, что вам не нравится. Нам нужно понять, как вы живете, чтобы создать индивидуальный дизайн для вас и вашей семьи.
Прохождение (Источник: Interior Visions, llc)
Наша работа — воплотить ваше видение в реальность. Делимся вдохновляющими изображениями и комментариями к изображениям.Мы просим вас искать изображения и писать комментарии о том, что вам нравится или не нравится в изображениях. Вы также можете найти вдохновляющие изображения в журналах.
Вдохновляющие изображения (Источник: Interior Visions, llc)
Одна из ключевых частей стратегического планирования — это понимание ваших целей и бюджета. Суть в том, чтобы создать дизайн с учетом вашего бюджета, который вы в состоянии выполнить.
Часто дома не имеют планов этажей, или планы этажей старые и составлены вручную.В любом случае, мы можем использовать ваши существующие планы этажей или создавать новые планы с нуля, измеряя в полевых условиях все пространства вашего дома. Набросаем новый план с размерами; Затем мы делаем наброски на компьютерном программном обеспечении и создаем набор новых цифровых планов этажей.
Размеры (Источник: Interior Visions, llc)
2. Разработка концепции: внедрение функции в ваше пространство
Это этап, на котором мы решаем ваши вопросы по планированию пространства за вас.То, как мы жили в 1980-х или 90-х, ушли в прошлое! Большинство домов, построенных в прошлые десятилетия, подвергаются ремонту — будь то ванная, кухня или весь дом. В настоящее время ваши клиенты ищут открытые пространства. Это означает, что мы можем сносить стены, чтобы создавать новые пространства и решать проблемы с неудобными пространствами. Это ключевой этап создания отличного дизайна. Мы хотим убедиться, что помещения функциональны .
Мы создаем эскизы, используем новый цифровой набор поэтажных планов и начинаем трансформировать планировку помещений.Этот процесс осуществляется с помощью эскизов, чертежей в масштабе и цифровых изображений в черно-белом режиме. (На этом этапе мы делаем фотографии для использования в качестве фотографий «ДО».)
Эскизы (Источник: ООО «Интерьер видения»)
После разработки концепции дизайна мы планируем презентацию с клиентом для обзора и обратной связи. Идея состоит в том, чтобы правильно спланировать пространство! Неважно, сколько раундов изменений потребуется. Мы гордимся созданием функциональных пространств.Это то, что у нас получается лучше всего!
3. Разработка дизайна
Мы, дизайнеры, собрали всю эту информацию, а также отзывы, которые мы получаем от вас, а затем приступаем к творческому процессу. Творческие соки текут. Это этап, на котором мы переходим к деталям дизайна. Идея состоит в том, чтобы создать стиль дизайна, который будет дополнять архитектурный стиль вашего дома на северо-западе Тихоокеанского региона, например, , модерн с элементами рустика, модерна середины века, переходного стиля и т. Д.
Мы выбираем материалы, включая отделку, пол, плитку, деревянные детали и т. Д., Которые являются частью темы дизайна для клиента. Мы создаем подробные чертежи, новый предлагаемый план этажа, фасады стен, показывающие новый вид каждой стены, и любые другие наглядные пособия, которые мы считаем необходимыми для иллюстрации плана дизайна.
Мы предоставляем макеты комнат и образцы материалов, включая ткани, настенные покрытия, текстиль, выбор цвета, столярные изделия, столярные изделия, освещение, предметы искусства и аксессуары.
В рамках дизайна мы создаем новую цветовую палитру, которая сочетается с новыми отделками и материалами.
Разработка дизайна (Источник: Interior Visions, llc)
Итог, мы заранее все спланируем для вас. Также мы составляем предварительный прайс-лист на все презентации материалов. Работаем с ценами на материалы. Мы обладаем обширными знаниями о лучших материалах и конкурентоспособных ценах, что позволяет нам создавать необычный дизайн в рамках вашего бюджета.
Презентация по разработке дизайна (Источник: Interior Visions, llc)
4. Строительная документация
После того, как заказчик утвердил дизайн, мы, дизайнеры Interior Visions, создаем подробную строительную документацию, которая сообщает подрядчикам о любой сделке, например, , плотники, плиточники, сантехники и т. Д. — все, что им нужно знать, чтобы безупречно выполнить дизайн. Здесь нет места ошибкам.
Спецификации строительной документации (Источник: Interior Visions, llc)
Строительная документация также необходима для получения разрешений на строительство в рассматриваемом городе.В зависимости от города и размера проекта, иногда городу требуются планы участка, которые представляют собой предлагаемые планы, показывающие объем, графики материалов и высоты. Мы гордимся строительными чертежами, которые создаем сами, чтобы реализовать наши собственные проекты.
Строительная документация возвышений (Источник: Interior Visions, llc)
5. Строительное управление
Мы делаем за вас всю тяжелую административную работу.Мы идем в городской офис по выдаче разрешений на строительство, подаем заявление на получение разрешения, мы занимаемся процессом рассмотрения города, а затем получаем разрешение на строительство для вас. У нас также есть процедуры, позволяющие убедиться, что все материалы, указанные в проекте, заказаны правильно. Мы предоставляем спецификации материалов, на которые есть ссылки в планах. После утверждения всех материалов и стоимости строительного проекта мы приступаем к строительству.
Строительное управление (Источник: ООО «Интерьер видения»)
Мы, дизайнеры Interior Visions, имеем лицензию подрядчика, и мы гордимся тем, что сами управляем нашими проектами.Мы берем на себя весь проект реконструкции и строительства, координируя все и всех. Мы находимся на стройплощадке каждый день. Мы управляем каждой торговой транзакцией от вашего имени. Нам нравится эта часть работы !!
После завершения строительства мы поможем вам подобрать новую мебель и аксессуары для вашего ремонта. Мы планируем все аспекты вашего нового пространства, от мебели и текстиля до аксессуаров, освещения и т. Д.
Как только будет доставлена новая мебель, мы выполним весь стиль вашего дома (и сделаем фотографии для использования в качестве фотографий «ПОСЛЕ»).Это моя любимая часть процесса дизайна. Я вижу, как мои клиенты широко улыбаются, когда видят, что все складывается вместе.
Недавно реконструированная кухня / столовая в Редмонде (Источник: Interior Visions, llc)
Внешний дизайн: ДО и ПОСЛЕ трансформации (Источник: Interior Visions, llc)
Кухня: ДО и ПОСЛЕ трансформации (Источник: Interior Visions, llc)
Ванная: ДО И ПОСЛЕ трансформации (Источник: Interior Visions, llc)
Мы гордимся своим дизайном.Мы создадим трансформацию Function + Style для дома вашей мечты.
Для получения дополнительной информации о нашем процессе проектирования, пожалуйста, свяжитесь с Фабианом по телефону (206) 794-6762.
Процесс дизайна интерьера | ALX Интерьеры
Процесс проектирования — это дорожная карта для реализации нашего видения для каждого из наших клиентов в виде запланированной, организованной и скоординированной документации по всем элементам дизайна, выбору и решениям, принимаемым на этом пути. Это гарантирует, что подрядчик полностью понимает план проектирования и спецификации.
ПРОГРАММИРОВАНИЕ
Это наша фаза исследования дизайна и мозгового штурма. Отправная точка любого дизайн-проекта интерьера. На этом этапе мы узнаем о ВАС все. Ваш образ жизни, ваши предпочтения, симпатии и антипатии, ваши потребности, цели и пожелания в отношении вашего нового пространства. Для нас важно видеть вашими глазами, если мы хотим создать то, что вам нравится.
На протяжении всего процесса программирования мы:
• Подробно обсуждаем ваш проект, документируем все задействованные области,
• Обсуждаем ваши стилистические предпочтения и идеи.(Мы рекомендуем вам собрать отрывные листы из журнала или онлайн-источников, чтобы лучше донести свои идеи.)
• Посетите объект, чтобы измерить, сфотографировать и записать существующие условия.
• Составьте предварительный бюджет
• Получите, если возможно, набор архитектурных планов от вас или вашего архитектора.
КОСМИЧЕСКИЕ ПЛАНЫ И КОНЦЕПЦИЯ ДИЗАЙНА
Планировка пространства — предпосылка любого хорошо спроектированного пространства. Мы много раз встречаемся и разговариваем на этом этапе проекта.С клиентами проводятся встречи для обсуждения различных элементов дизайна.
На этом этапе мы:
• Устанавливаем концепцию дизайна интерьера и общее творческое направление.
• Создавайте эскизы и собирайте отрывные листы, чтобы сообщить и прояснить замысел дизайна.
• Создайте предварительные планы этажей
• Выберите отделку, которую мы будем использовать
РАЗРАБОТКА ДИЗАЙНА
На этапе разработки проекта утвержденная концепция проекта уточняется и превращается в более подробные чертежи, которые включают:
• Планы этажей
• Уровни
• Отраженные планы потолка
• Выбор материалов и отделки
• Планы мебели
• Выбор мебели и меблировка
ОКОНЧАТЕЛЬНАЯ ФАЗА РАЗРАБОТКИ И СПЕЦИФИКАЦИИ
После утверждения проектных планов мы приступим к подготовке окончательных проектных чертежей и спецификаций.
Этот этап включает в себя:
• Внесение всех необходимых изменений или исправлений в чертежи
• Создание окончательных чертежей со всеми спецификациями
• Создание всех материалов и графиков отделки
СТРОИТЕЛЬСТВО И МОНТАЖ
Завершающий этап проекта. После всего планирования, набросков и встреч мы наконец начинаем строительство и реконструкцию помещения! Мы превращаем наши концепции и изображения в реальность. Продолжительность этого этапа дизайн-проекта может варьироваться в зависимости от объема необходимых работ.
На этом этапе мы:
• Смотрим чертежи вместе со строителем или генеральным подрядчиком, которого мы выбираем.
• Рассматриваем все заказы с клиентами. При необходимости мы размещаем заказы от их имени.
• Периодически посещаем рабочие площадки, чтобы решать любые возникающие проблемы, отвечать на любые вопросы, связанные с дизайном или чертежами, и гарантировать, что строительство ведется в целом в соответствии с утвержденными проектными чертежами,
• График и координировать доставку и установку обоев, оконных покрытий, ковриков / ковровых покрытий, мебели, аксессуаров и произведений искусства.
Шаблон объема работ по дизайну интерьера
Как профессиональный дизайнер интерьеров, ваша работа — это больше, чем просто дизайн. Вы обязаны позаботиться о строительстве и управлении проектом. Вам нужно сделать несколько вещей, чтобы обеспечить успех вашего дизайнерского бизнеса. Помимо контракта, объем работ по дизайну интерьера поможет вам понять все задачи, связанные с проектом. Это важный документ, если вы хотите правильно передать задуманный дизайн.
Однако правда в том, что многие дизайнеры интерьеров не используют объем работ. Некоторые даже не знают, как можно играть в проекте. Может быть, вы тоже спрашиваете, каков объем работ по дизайну интерьера? Дизайн интерьера — это понимание людей и потребностей людей в их пространстве. Каким образом его наличие на месте помогает вам?
Каков объем работ по дизайну интерьера?Объем работ по дизайну интерьера — это документ, в котором подробно описываются все задачи, кто выполняет каждую работу, сроки и все другие условия в дизайн-проекте.Это повествовательное описание того, что требуется для проекта. Вам необходимо добавить объем работ в запрос предложений (RFP) и соглашение о предоставлении услуг. Это также поможет вам узнать, соответствует ли проект поставленным целям на момент его завершения.
Объем работ вступает в силу после завершения этапов проектирования и чертежа. Объем работ по дизайну интерьера может зависеть от типа проекта. Однако определенные функции должны постоянно находиться в рамках работы.Вам необходимо убедиться, что эти элементы присутствуют в вашем документе.
Что должен содержать объем работ по дизайну интерьера?Сфера вашей работы в качестве дизайнера интерьера всегда должна содержать определенные детали. Некоторые из функций, которые вам следует включить:
1. Управление строительствомКак дизайнер интерьеров, вы также принимаете участие в процессе строительства. Вы должны включить свой вклад в объем работы. Эти материалы являются вашими ответами на предложения подрядчика, пересмотренную строительную документацию и проектные замыслы, основанные на строительной документации.Все это должно быть доступно в согласованные сроки.
2. СтроительствоВаша работа в качестве дизайнера интерьеров продолжается и во время строительства. Вы также должны подробно описать, чем вы занимаетесь в этот период в своей работе по дизайну интерьера. Подробная информация включает в себя ваш список проверки на недостатки и окончательный список ошибок.
3. Представление объектаКак правило, присутствие дизайнера интерьера на объекте на постоянной основе не требуется.Однако, если вы предлагаете эту услугу, вы должны включить ее в свой объем работы. Вы также должны включить отдельную плату за эту услугу.
4. Любые дополнительные услугиВы можете добавить любые дополнительные услуги, которые вы предлагаете в рамках своей работы. В документе также должны быть указаны сроки и стоимость ваших услуг. Ваш клиент также может вносить изменения в объем работ до его подписания и согласования. После того, как владелец или руководитель проекта письменно одобрит, можно приступать к работе.
Возможно, вы задаетесь вопросом, почему вы должны испытывать стресс, создавая объем работы по дизайну интерьера. Давайте посмотрим на важность этого документа.
Важность объема работ по дизайну интерьераОбъем работ по дизайну интерьера влияет на общий результат проекта. Правильно подготовленный проект гарантирует, что вы достигнете целей проекта по бюджету, качеству и графику, а также достигнете проектного замысла в установленных рамках.
Некоторые другие причины, по которым необходим объем работ, включают:
- Помогает избежать конфликтов с архитектором.
- Это уменьшает недопонимание и ложные ожидания.
- Вы можете избежать потерь из-за непредвиденных расходов и разбросанных предметов, поскольку это заставляет людей нести ответственность.
Успех документов по контракту на экзамене NCIDQ • Qpractice
Строительные чертежи, графики и спецификации создаются после завершения проектирования и утверждения проекта заказчиком. Эти СД претворяют в жизнь замысел проектировщика.
Как проектировщик, вы должны уметь читать и интерпретировать строительную документацию, включая чертежи и спецификации.Вам также потребуется уметь создавать их, используя отраслевые стандарты и соглашения о рисовании. Строительная документация — это договорная документация .
Хотя вы можете придумать новаторские идеи дизайна интерьера, вы должны сначала сообщить их своему клиенту. Затем вы должны передать свои инструкции строительной бригаде, разрабатывающей ваше проектное решение.
Есть поговорка о , «говорящем на словах», и «идущим пешком». Это означает, что вам нужно поддерживать то, что вы говорите, не только словами, но и своими действиями. В строительстве и дизайне интерьера эти действия или инструкции оформляются в виде договорных документов.
Ваши знания строительной документации имеют решающее значение для вашего успеха на экзамене NCIDQ и в качестве профессионального дизайнера интерьеров.
Строительные чертежи
Строительные чертежи зависят от точности. Таким образом, создаваемые вами чертежи должны быть максимально точными, в пределах допусков для предполагаемого использования.Иногда вы будете работать с уже построенными планами от архитектора или местного строительного офиса. Если такой возможности нет, вам нужно будет измерить существующее пространство, чтобы создать план этажа.
Рабочие чертежи
Строительные чертежинеобходимы по двум причинам:
- Построенные чертежи служат записью для проектирования будущих изменений или дополнений помещения.
- Готовые чертежи также могут быть полезны для группы эксплуатации и управления. Например, на этих чертежах показано расположение критических датчиков системы управления и запорных клапанов.
Подрядчик хранит основной комплект исполнительных чертежей на строительной площадке для регистрации любых изменений. Эти размеченные вручную рисунки называются рисунками с красной линией. Каждый подрядчик и субподрядчик проверяет установку согласно исходным чертежам или записывает изменения. Изменения обычно отмечаются красными чернилами, отсюда и название.
После строительства все отмеченные красной линией изменения переносятся в окончательные чертежи. Эти изменения используют исходные файлы чертежей дизайнеров в качестве отправной точки.Наконец, обновленные исполнительные чертежи передаются владельцу в рамках процесса закрытия проекта.
Во время учебы обязательно ознакомьтесь со всеми видами строительной документации. Если вы не работаете над чертежами в своей работе, вам может быть труднее понять различия. Спросите своего менеджера, как вы можете внести свой вклад в проект и работать с комплектом строительных чертежей.
Обмеры и стандарты на строительные чертежи
Есть несколько инструментов и подходов к измерению пространства.Вы должны быть знакомы с каждым из них и знать, какой уровень точности требуется для конкретных типов проектов. Кроме того, вам необходимо понять, какие соответствующие соглашения об измерениях применимы к конкретному проекту и какие стандарты для строительных чертежей используются.
- Рулетка
- Электронное измерение расстояния (EDM)
- Безотражательное электронное измерение расстояния (REDM)
- Ректифицированная фотография
- Ортофотография
- Фотограмметрия
- Стереофотограмметрия
- Конвергентная фотограмметрия
- Лазерное сканирование
Хотя проекты различаются, общие стандарты применяются к строительным чертежам в терминах:
Размер листа чертежа
Размер листа определяется степенью, необходимой для рисования плана этажа на одном листе бумаги.Стандартные размеры листов основаны на трех системах:
- Архитектура
- ANSI
- ISO (метрическая)
Основные надписи
Блоки заголовков содержат информацию о проекте, а также данные, относящиеся к каждой странице. Некоторые примеры включают:
- Номер листа
- Название листа
- Контактная информация для дизайнеров, консультантов и владельцев
- Название проекта
- Номер проекта
Профессиональные штампы - Масштаб
- Стрелка севера
- Примечания
- Ключевой план
- Место для рисования / проверено
- Дата ревизии
Общие примечания
После титульного листа или титульного / индексного листа, Общие примечания относятся ко всему проекту в целом.Например, один или несколько листов предназначены для общих примечаний в наборе строительных чертежей. Примеры могут включать:
- Общее резюме / описание работ
- Как будут управляться ценообразование и оплата
- Как обрабатывать альтернативы
- Процедуры изменения контракта
- Процедуры подачи образцов / заводских чертежей
- Окончательная уборка и защита рабочего места
Лист организация
Большинство фирм организуют чертежи, используя один из этих двух стандартизированных методов: UDS
Uniform Drawing System или Институт строительных спецификаций
(CSI).
Оба метода имеют следующие общие черты:
Границы – обычно шириной 1/2 дюйма или 3/4 дюйма на верхнем, правом и нижнем краях. Для переплета по левому краю требуется 1-1 / 2 дюйма.
Основная надпись — обычно расположена с правой стороны. Большинство заголовков имеют размер примерно 6 x 6 дюймов, но будут отличаться от фирмы к фирме.
План сноса
План сноса показывает, какие существующие строительные компоненты будут удалены, а какие останутся.
Некоторые проекты несложные, сносится только небольшая территория, например, перегородка. Это может быть показано на плане этажа здания пунктирной линией, а не на отдельном плане сноса.
Для сложных проектов требуются отдельные планы сноса. Снесенные компоненты также должны иметь размеры, как и при новом строительстве.
Планы этажей и фасады
Планы этажей , часто называемые планами помещений, показывают вид помещения сверху, как если бы здание было разрезано по горизонтали на 4 фута над уровнем земли.
Поэтажные планы показывают конфигурацию здания, включая все существующие компоненты, а также
- новые перегородки
- лестницы
- встроенные компоненты
- приспособления
- материал пола
- названия комнат
- символическая ссылка на любые фасады / разрезы / виды деталей
- особые примечания или оборудование
В зависимости от размера проекта планы этажей нарисованы в масштабе 1/8 ″ или 1/4 ″ = 1′-0 ″.
Фасадные чертежи показывают вертикальные поверхности с прямой проекции без искажений.Они могут показывать поверхности стен, проемы, встроенные элементы и места для выключателей света или термостатов.
Elevations может ссылаться на другие чертежи, такие как подробные чертежи и разрезы, для дальнейшего пояснения конструкции.
Отметки обычно рисуются в масштабе 1/4 ″ или 1/2 ″ = 1′-0 ″.
План выхода
План выхода на каждый этаж должен быть частью строительной документации. На чертежах плана выхода должны быть показаны все части средств выхода, включая требования кодов для:
- Нагрузка для людей
- количество выходов
- ширина выходов
- общие пути выхода
- расстояния до выхода
отраженный план потолка
Этот строительный чертеж содержит план этажа, план мебели, отраженный план потолка и план электропитания на одном листе.Отраженный план потолка (RCP) показывает всю конструкцию потолка. RCP нарисован в той же ориентации и в том же масштабе, что и план этажа, с высоты птичьего полета, как если бы потолок был прозрачным.
RCP имеет решающее значение для координации с другими сделками. Например, дизайнеры будут координировать свои действия с HVAC, инженерами-электриками и дизайнерами освещения. RCP используется для отображения этих компонентов здания вместе, чтобы исключить конфликты с местоположением.
В небольших жилых проектах RCP можно комбинировать с чертежами освещения и электрооборудования.Для более сложных проектов чертежи RCP, освещения и электрооборудования обычно разделяются.
На отраженном плане потолка показаны все стены, которые касаются потолка или проходят сквозь него. Он также иллюстрирует расположение:
- потолочные материалы
- спринклерные головки
- детекторы дыма
- диффузоры / вентиляционные отверстия
- панели доступа
- динамики
- светильники, включая аварийное освещение
- переключение света (в зависимости от проекта, иногда по электрическому чертежу)
- условные обозначения
- указаны критические размеры, а также изменения высоты потолка
Подробная страница
Чертежи на странице с подробностями передают видение дизайнера подрядчику и торговым предприятиям.Чертежи деталей соответствуют своему названию. Они показывают, как производится сборка и соединение нескольких компонентов — как можно построить конструкцию. Один из примеров — деталь кессонного потолка.
Поскольку они могут быть довольно сложными, чертежи деталей отображаются крупнее плана этажа. Типичный диапазон шкалы от 1 ″ = 1’0 ″ до 3 ″ — 1’0 ″. Также распространены рисунки в половинном и полном размере.
Прочая контрактная документация
Строительные чертежи — не единственный тип контрактной документации, которую вы будете использовать и на которой будете тестироваться.Другие включают графики и спецификации.
Расписания
Таблицы в строительной документации имеют дело с информацией. Расписания отображают сложную информацию в формате диаграммы, поэтому ее легко читать и понимать.
Каждая запись имеет числовой идентификатор и связанные с ним атрибуты в каждом из столбцов. Например, типичные графики, используемые в дизайне интерьера, включают:
- Таблицы дверей
- Таблицы отделки
- Таблицы оборудования
- Таблицы столярных работ
- Таблицы кухонного оборудования
Строительные спецификации
Строительные спецификации не входят в комплект строительных чертежей.Вместо этого они являются частью руководства проекта .
Строительные спецификации инструктируют подрядчиков о том, какие материалы будут использоваться и где. Как и набор чертежей, спецификации доступны для ознакомления подрядчикам перед подачей заявки на проект. Кроме того, спецификации обычно требуются подрядчиком для предоставления точного предложения.
Существует несколько различных подходов к написанию спецификаций. Некоторые из них шире и допускают интерпретацию.Остальные спецификации очень подробны. Дизайнер интерьера должен понимать разницу между различными типами спецификаций. Разработчик также должен понимать, когда и где каждый тип спецификации является наиболее подходящим.
Вот три популярных типа спецификаций:
Предписательные спецификации
Эти спецификации точно указывают подрядчику, какой продукт / материал использовать. Предписательные спецификации также называются «закрытыми спецификациями».”
1. Собственные спецификации
Этот тип предписывающих спецификаций называет продукт конкретного производителя по имени или номеру модели. Это наиболее строгий тип спецификации.
2. Базовая ставка
Базовая заявка — это тип предписывающей спецификации, в которой указывается патентованный продукт. Разница в том, что базовая спецификация предложения допускает замену подрядчиком. Эти спецификации должны быть одинакового качества и утверждены дизайнером интерьера.
Технические характеристики
Обеспечить качественный монтаж продукта можно с помощью спецификаций, но как насчет качества строительства и монтажа? В технических характеристиках указываются результаты определенного элемента, но подрядчик может найти решение. Технические характеристики также называются «открытыми спецификациями».
3. Стандартные спецификации
Эти спецификации описывают материал, продукт или процесс с использованием критериев или требований, установленных торговой ассоциацией, признанным органом или методом тестирования.
Данный пункт выполняется за отдельную плату.