Планировка мини гостиницы: Проект мини гостиницы разработать концепцию и дизайн интерьера
Проект мини гостиницы разработать концепцию и дизайн интерьера
Дизайн проект мини гостиницы
Сегодня все большую популярность приобретают мини гостиницы. Наша архитектурная студия «Дизайн-Москва» рада предложить Вам проектирование и дизайн мини гостиниц и гостиничных номеров.
Частные гостиницы и мини отели, являются популярным направлением проектирования и все больше требуют профессиональной разработки. Хорошо разработанный стиль интерьера отвечающий всем современным требованиям к удобству и узнаваемый дизайн интерьера. Мини гостиницы набирают все больше популярность среди людей которые ценят комфорт и любят путешествовать.
Проект мини гостиницы
Небольшие гостиницы и отели в основном располагаются в старой части города в мегаполисах и в исторических городах. Такие гостиницы удобны для туристов, приезжающих посмотреть исторические достопримечательности города. Благодаря хорошим специалистам архитекторам и дизайнерам, возможно перепроектировать старинное здание в городе в мини гостиницу.
Чаще всего, можно сделать редизайн и проект гостиницы на 20-30 номеров. Мини гостиница в которой можно как переночевать, а так же рассчитывать на полноценное питание и все удобства комфортного проживания.
Проект дома мини гостиницы
Гостиница из бруса Гостиница у моря Гостиница на сложном рельефеСвои особенности при проектирование гостиницы из бруса для которых необходимо понимание работы деревянных конструкций здания. При проектирование и строительстве гостиницы на сложном рельефе можно использовать перепады рельефа участка под гостиницу для более удобной планировки здания. При проектирование и строительстве гостиницы у моря много требований к панорамным видам на красиво организованный ландшафт и окружающую природу создающую дополнительную ценность.
Проекты мини гостиниц и гостевых домов
Первый ЭтажПреимущества мини гостиниц
— домашняя и уютная атмосфера,
— большой выбор относительно тематики отеля,
— доступная стоимость проживания,
— возможность арендовать номер на день,
— из-за небольшого кол-ва номеров, здесь всегда тихо и спокойно
— имеется общая кухня или буфет, определенный набор посуды,
— часто бывают дополнительные полезные услуги,
Этапы проекта гостиницы
Проект гостиницы или отеля начинается с эскизных предложений планировки с удобным расположением номеров, так же разработки вариантов планов 1 этажа с расположением ресепшена, зоны ожидания и отдыха, а так же кафе для завтраков гостей.
Типовой Этаж
Гостиница для охотников
Мини гостиница была спроектирована для охотников и рыболовов. На первом этаже мы спроектировали холл с камином, та как все охотники и рыболовы очень любят поделится своими историями и приключениями. Поэтому запрос на проект гостиницы был с обязательным уютным местом для общения у камина. Так же должна была обязательно быть кухня-гостиная для приготовления трофеев принесенных из леса и озера. В каждом номере должно было быть просторное спальное место и место для хранения вещей, так же предусмотрены или свой с.у. или 1 с.у. на две комнаты. Так как гостиница располагается в экологически чистом районе, то и все строительные материалы для стен, перекрытий и кровли были из дерева.
Мини гостиница под ключ
Для хорошего проекта очень важно на первом этапе правильно спланировать все пространство и создать красивый и запоминающиеся интерьеры и экстерьер отеля, так же очень важно его эффективное позиционирование.
Это может быть мини гостиница для отдыха всей семьи, отель для туристов или отдыхающих.
Проект гостиницы в лесу
При строительстве гостиницы в лесу применяются иногда очень интересные технологии. Так как в зимний период выпадает большое количество снега, то при стандартном фундаменте вход в гостиницу для охотников может быть погребен под снегом , для того чтобы в любое время года можно было бы попасть в охотничий домик его поднимали от земли на 2 метр. Очень интересно выглядят эти дома летом ! Когда снег стаивает, охотничий домик оказывается домиком на куриных ножках. Домик поднят от земли и в качестве фундаментных опор используются спиленные стволы деревьев.
Домик охотника
Дом на дереве
Проекты деревянных гостиниц
Проект мини отеля
Проектирование мини отеля включает в себя:
1 этап
- Определения типа и категории отеля
- Концепция помещения отеля
- Разработка маркетингового исследование и бизнес-плана
- Разработка фирменного стиля
2 этап
- Разработка Архитектурного проекта гостиницы
- Разработка Технологического проекта
- Проект ресепшена
- Дизайн номеров
- Дизайн лоби бара
- Помещения для персонала
Проект мини гостиницы цена
Включает в себя проектирование здания гостиницы и (или) дизайн интерьера гостиницы от первого этажа где располагаются административные помещения, ресепшн зона отдыха и приема гостей и кафе для завтраков посетителей.
Проектирование этажей номерного фонда может быть галерейного типа (наиболее распространенного) с лестничным холлом
Дизайн мини гостиницы
Проекты частных гостиниц
Одним из привлекательных семейных бизнесов является строительство собственных небольших гостиниц.
Выигрышном положении находятся владельцы недвижимости в крупных городах, так как небольшие отели и гостиницы Питера, Москвы и других центральных регионов пользуются высоким спросом в течение всего года. Безусловно, в своем городе организовывать такого рода бизнес гораздо легче, изучив текущее состояние гостиничной инфраструктуры, определив уровень спроса и его сезонность, проанализировать конкурентную ситуацию, так же наилучшим результатом будит обратиться к профессионалам, которые помогут определиться с местом под строительство гостиницы или на уж приобретенном участке под строительство предложат наилучший вариант планировочного решения и стиля фасада.
В историческом районе города, гостиница должна вписываться в существующую историческую застройку и в тоже время нести в себе лучшие проявления исторической эпохи и современных технологий.
Мини гостиницы у моря
Размещение мини гостиниц в курортных городах, которые безусловно предоставляют отличные возможности в предоставление комфортных мест размещения и отдыха приезжающим на оздоровление и отдых. Для открытия гостиничного бизнеса, большим преимуществом является наличие объектов туристической инфраструктуры, весьма перспективными являются населенные пункты с культурно-историческими объектами, а также с хорошим экологическим .
Следующий важный вопрос, который встает перед желающими открыть собственный отель — каким образом оборудовать помещение, строить с нуля или покупать готовый объект. Мы предлагаем проектирование здания гостиницы или отеля под ключ. Хороший проект может позволить добиться значительной экономии при строительстве. Интересные архитектурные решения позволят создать индивидуальный и запоминающийся стиль вашего отеля. Комфортные номера и приятный отдых позволят сделать постоянно заполненную гостиницу.
Мини отель может являться и бутик-отелем, то есть иметь уникальное тематическое оформление интерьеров, в зависимости от его назначения, названия, места расположения и т.д.
Проект Бутик-отель
Бутик отели представляют собой небольшие гостинец до 100 номеров особенность которых заключается в том, — что каждый номер сделан в собственной тематике и дизайне. В таких гостиницах нету повторяющихся номеров. Все сделано индивидуально и под заказ.
Дизайн бутик отель
Коллекция уникальных изысканных интерьеров для отдыха, досуга и проживания.
Чтобы заведение пользовалось популярностью, номера должны обеспечивать идеальные условия для гостей. Высококачественное оборудование для гостиниц и отелей позволяет сделать отдых постояльцев комфортным и облегчает работу персонала, делая ее более продуктивной.
Плюсы и минусы мини-гостиниц:
— из-за небольшой площади, отсутствие дополнительных зон (рестораны, фитнес-клубы, бассейны и SPA) Но, чаще всего это все находится вблизи зданий.
Проектирование Мини гостиниц начинается с планировочной идеи , количества номеров и их расположения.
Стилистика интерьера гостиницы определяется пожеланиями и вкусами владельца гостиницы и составленным Техническим заданием на проектирование Мини гостиницы
Ресепшен мини гостиницы
Является представительской частью всей гостиницы и по ней очень часть судят о качестве номеров и уровне обслуживания.
- Дизайн проект интерьеров входных групп и ресепшенов гостиниц
- Дизайн интерьера кафе и ресторанов гостиниц и отелей
- Дизайн интерьеров номеров гостиниц
Помещения мини гостиницы
- а) жилые помещения — номера;
- б) помещения обслуживания;
- в) подсобные помещения;
- г) помещения для досуга, если такие предусмотрены;
Проекты мини гостиниц на 20 номеров
Проект мини гостиницы на 15 номеров
Проекты мини гостиниц на 10 номеров
Проекты мини гостиниц на 6 номеров
Проект мини гостиницы под ключ
Мы разработаем концепцию мини гостиницы, создадим проект и воплотим в жизнь лучшее проектное решение.
Получить дополнительную информацию можно, позвонив консультантам компании «Дизайн-Москва»
по телефону: +7 (999) 809 71 13
План каркасной мини-гостиницы — как построить частный отель, готовые типовые проекты, планировка, чертежи
Содержание статьи
- Особенности проектирования гостиниц
- Особенности проектирования номерного фонда
- Основные этапы проектирования гостиниц
- Приобретение готового проекта: плюсы и минусы
- Определение требований к проекту: концепция
- Проект: подготовка чертежей и документов для получения разрешения на строительство
- Рабочая документация: Техническое задание, смета. Выход на стройплощадку
Каждый, кто занимается гостиничным бизнесом, знает, что сфера гостеприимства – это сочетание творчества и максимальной «зарегламентированности». Регламенты прописаны как для гостиничного объекта, так и для работы сотрудников.
Так, еще на этапе разработки плана гостиницы, будущему владельцу отеля необходимо изучить правила оформления проектно-сметной документации, нормативы градостроительного законодательства, учитывать локальные географические и геологические условия.
Рассмотрим вопросы проектирования гостиниц более подробно.
Особенности проектирования гостиниц
Гостиница – сложный многофункциональный объект. В силу своей специфики он должен быть удобным, функциональным, безопасным, эстетически привлекательным (изнутри и снаружи). Логично, что одного зонирования пространства (номера, дополнительные комнаты, подсобные помещения) здесь будет недостаточно.
При этом помещения поэтажного обслуживания возможно располагать через этаж.Также надо предусмотреть, как развести разные потоки гостей, например, направляющихся на мероприятие и к зоне ресепшн для последующего заезда.
В целом, для проектов гостиниц любого типа важно следующее:
1. Соответствие объекта техническим, экологическим, санитарно-эпидемиологическим нормам и правилам, а также возможность последующей его реконструкции.
Многочисленные регламенты можно разделить на следующие группы:
- Градостроительные
- Функционально-технологические
- Санитарно-эпидемиологические
- Пожарная безопасность
- Конструктивные
- Инженерные
Полный перечень см. внизу статьи.
Есть два важнейших Свода правил (СП) в гостиничном бизнесе, которые должны быть для отельера настольной книгой:
- СП 257.
1325800.2016 Здания гостиниц. Правила проектирования (утвержден и введен в действие Приказом Министерства строительства и жилищно-коммунального хозяйства Российской Федерации (Минстрой России) от 20 октября 2016 г. N 724/пр). В этом документе даются ссылки на ГОСТы и другие Своды Правил (около 50 нормативов) - СП «СНИП 31-06-2009 «Общественные здания и сооружения» (утвержден Приказом Министерства регионального развития Российской Федерации от 23 декабря 2011 г. №- 635/10.
Кроме того, международные гостиничные сети учитывают требования Международных норм и правил проектирования зданий (International Building Code (IBC)
2. Объект должен быть органично вписан в окружающую среду и сохранить (и даже подчеркнуть) особенность ландшафта.
В принципе, в этом плане гостиницы следуют канонам Органической архитектуры (тренд, зародившийся в 1890-е гг. в противоположность функционализму).
Известный пример – отель Amangiri (штат Юта, США).
Отель расположен среди пустынных скал. Аскетичный образ пустыни подчеркивают одноэтажные строения отеля, песчаный цвет стен, простота интерьеров.
3. Учет факторов природно-климатического характера (температура, влажность, ветровые нагрузки и др).
Раздел отраслевых норм, определяющий требования к проектированию зданий и строительству домов с учетом климатических условий называется «Строительной климатологией». В России эти требования регулирует СНиП 23-01-99.
К примеру, в холодном климате ширину здания максимально увеличивают, при этом сокращая периметр наружных стен; группы зданий соединяются между собой крытыми переходами. Водопроводные и канализационные трубы, а также подошва фундамента укладываются ниже глубины промерзания. В теплом и жарком климате в здания устанавливают открытые помещения, например, балконы или террасы.
В районах с высокой и средней влажностью используются элементы безопасности кровли: они, к примеру, помогают распределять снеговую нагрузку, защищают от схода снега.
Также на проект здания влияет ветровой режим. Для правильного расчета используется наглядная диаграмма Роза ветров, которая дает информацию о силе ветра в той или иной конкретной местности для определенного времени года. К примеру, от преимущественного направления и силы ветра будут зависеть размер и расположение окон и отверстий вентиляции и даже ориентация всего строения. Цель – исключить выдувание тепла. Также сила ветра повлияет на строение крыши. К примеру, чем выше скаты крыши, тем большую ветровую нагрузку они испытывают. С другой стороны, на слишком пологих скатах надолго будет оседать снег. Хороший компромисс для снежных и одновременно ветреных районов – наклон скатов в диапазоне от 20 до 45 градусов.
Подробные расчеты даны в СНиП 21.014.07-85 «Нагрузки и воздействия»
4. Проект должен обеспечивать персоналу комфортную работу, а гостям – удобство. При этом эстетику внутри и снаружи также никто не отменял.
5. Оптимальное соотношение эксплуатационных расходов и последующих доходов.
Например, относительно новым трендом стало не устанавливать в отелях стойку приема и размещения гостей. Ее функции выполняет программа, позволяющая гостю заселиться в отель, используя свой смартфон (на телефон гостю приходит код от номера). По такой схеме работают, к примеру, отели сети «Omena Hotels». Понятно, что сэкономленное пространство может стать дополнительным источником дохода либо в проекте можно изначально сделать меньшую площадь, за счет отсутствия этой зоны. Также за счет сокращения ресепшн можно увеличить зону лобби, которая последнее время все чаще становится местом переговоров и отдыха (тренд Open space Lobby)
6. По возможности, проект должен рекламировать сам себя (самая высокая гостиница, гостиница под водой и др).
Это как раз тот случай, когда нормы СНиПов могут соблюдаться не в полной мере, и при этом туристы будут стремиться побывать в этом отеле. К примеру, температура в номерах Sorrisniva Igloo Hotel (Норвегия) не превышает -6 градусов, но концепция ледяного отеля сама по себе крайне интересна для гостей.
Особенности проектирования номерного фонда
- Номера должны располагаться в зоне минимального воздействия шума (вдали от транспорта и инженерных систем отеля), а также быть изолированы от шумов и запахов кухни. Не допускается размещение номеров в подвальных и цокольных этажах.
- В отеле должно быть минимальное количество типов номеров, при этом их названия должны соответствовать традиционно принятым в гостиничной сфере;
- Площадь и оснащение номера должны соответствовать или превышать нормативные требования;
- Мебель и оснащение должны быть удобными как для проживающего, так и для обслуживающего персонала.
- Процентное соотношение номеров на одного и двух человек будет различаться, как правило, в зависимости от вида гостиницы (таблица ниже) и уровня ее комфорта. Так, в общественных отелях в России одноместные номера составляют 30-50% общего номерного фонда гостиницы. А вот в туристических и курортных гостиницах двухместные номера преобладают и составляют 75-100% от номерного фонда.

Подробно о категориях номеров и их специфике мы писали в статье «Категории номеров в отеле: виды, типы и расшифровка»
Основные этапы проектирования гостиниц
Условно говоря, можно выделить три стадии проектирования:
- Определение требований к проекту (концепция, финансовая модель, технико-экономическое обоснование целесообразности проектирования и строительства гостиницы и др).
- Проект: подготовка чертежей и документов, их экспертиза. Цель: получение разрешения на строительство.
- Рабочая документация: детальная разработка всех разделов проекта, финальные чертежи, подробная смета. Эти документы уже «отправляются» на стройплощадку. Цель: реализация проекта.
Рассмотрим каждую стадию проектирования более подробно.
Приобретение готового проекта: плюсы и минусы
На первоначальном этапе собственник будущего отеля принимает для себя решение: приобрести готовый проект или разработать индивидуальный? Особенно часто этот вопрос возникает при строительстве малых и мини-отелей.
У обоих вариантов есть свои «за» и «против».
В первом случае вам не придется тратить деньги и время на разработку проектно-сметной документации. К тому же в интернете можно найти достаточно много качественных вариантов, останется лишь заказать их подробную расшифровку.
Однако стоит понимать, что готовые проекты не учитывают рельеф конкретного участка, а также его климатические особенности и ваши финансовые возможности.
Определение требований к проекту: концепция
Итак, вы приобрели участок под застройку. Будем исходить из того, что ранее вы уже провели аналитические исследования и имеете четкое представление, какой тип отеля (бизнес, курортный, семейный и др) более всего уместен и необходим в данной местности. Приведем самые общие особенности в таблице.
| Вид средства размещения | Особенности расположения и проектирования |
| Общественные (для обычных и бизнес-туристов) |
В центре города. В пешей доступности должны быть торговые комплексы, административные здания. Если основная ЦА бизнес-туристы, то плюсом проекта будет наличие переговорных комнат.
|
| Туристические | Преобладают помещения общественного типа. При проектировании отелей учитываются особенности направления туризма. К примеру, в отелях для альпинистов, расположенных в горах, стекла сделаны таким образом, чтобы защитить глаза от вредных ультрафиолетовых лучей. |
| Курортные | Строятся вблизи гор, морей, целебных источников. Наиболее сложный тип гостиниц при проектировании, поскольку необходимо предусмотреть различные зоны отдыха: развлекательные заведения, зона отдыха для детей, спортивные площадки и др. |
| Кемпинг |
Как правило, это сезонные гостиницы, с развитой системой самообслуживания. Если ориентироваться не европейский кемпинг, то в нем предусмотрена площадка для авто-фургонов (здесь проведены электричество и вода), спортивная площадка, душ, туалет, кухня для общего пользования, прачечная, сейфовые ячейки и др. Понятно, что в России все пока намного проще.
|
| Мотель | Отель на 20-30 номеров с парковкой и набором базовых услуг. Располагаются вдоль автотрасс либо на окраине города. Важно предоставить туристам условия по уходу за автомобилем, для этого в непосредственной близости располагаются автостоянки, бензозаправочные станции, автосервис и т.д. Поскольку большинство гостей останавливаются в номере только одну ночь, то нет необходимости оборудовать номера шкафами, достаточно сделать открытую гардеробную стенку. |
Также примем за аксиому, что вы имеете представление, на сколько номеров будете строить свой отель. Также представим общие сведения в таблице.
|
Количество номеров (согласно ГОСТ Р 51185 ) |
Особенность проектирования |
| Мини (5-15) | Здесь главная задача архитектора – сделать относительно небольшое пространство гостиницы не только комфортным и по-домашнему уютным, но и максимально функциональным. Кстати, для мини отелей может подойти модульное проектирование, если есть возможность со временем увеличивать количество номеров. |
| Малые (16-50) |
Основной тип номеров, который лучше всего подойдет для малого отеля — это двухместные номера. Дело в том, что при наличии двух кроватей всегда есть возможность сдать номер одному человеку, но не наоборот. Возможны как TWIN (кровати раздвинуты), так и DOUBLE (кровати сдвинуты или установлена единая двуспальная кровать).
|
| Средние (51-200) | В отеле на 50 номеров и более уместно будет предусмотреть ресторан с отдельным входом (в том числе для посетителей «с улицы»), спортивный зал, салон красоты. Согласно СП 257.1325800.2016, при проектировании гостиниц от 100 номеров следует исключить пересечение маршрутов персонала (уборка номеров, вынос мусора и др) с маршрутами гостей. Если появляются отдельные хозяйственные помещения, то для них уже должен быть предусмотрен отдельный вход с улицы. |
| Большие (свыше 200) | Многоэтажная гостиница либо корпуса. Ресторана, бары, развлекательная зона могут располагаться в одном из корпусов. |
Также необходимо понимать, отель какого уровня вы хотите построить. Это также повлияет на ваш проект. В настоящее время основным стандартизирующим документом относительно «звездности» является Приказ Министерства культуры РФ от 11 июля 2014 г.
N 1215 «Об утверждении порядка классификации объектов туристской индустрии, включающих гостиницы и иные средства размещения, горнолыжные трассы и пляжи, осуществляемой аккредитованными организациями».
Кроме того, С 1 января 2019 года вступил в силу ФЗ №6 от 5 февраля 2018 года, предусматривающий поэтапное введение обязательной классификации для всех российских гостиниц. Уточняющие положения были разработаны Постановлением Правительства Российской Федерации «Об утверждении положения о классификации гостиниц» (подготовлен Минкультуры РФ 12.03.2018г.).
К примеру, для отелей категории 3* необходимо проектировать лифт, если здании имеет более 3х этажей; в то же время в отеле 4*лифт необходим, если этажей более двух. Так же в отелях 4* необходим грузовой лифт.
Площадь холла в отелях 3* может не превышать 80 кв метров, а в «четверке» — 120 кв метров. В отелях к 4*, имеющих более 15 номеров необходимо, при предусматривать помещение бизнес-центра, спортивно оздоровительного комплекса, бассейн или сауну с мини-бассейном.
В отелях категории 4*должны быть предусмотрены разнообразные точки питания: ресторан должен быть с несколькими залами, в отеле должно быть кафе, бар. В «трешке» должен быть ресторан или любая другая точка питания.
Проект: подготовка чертежей и документов для получения разрешения на строительство
Если говорить упрощенно (более развернутое определение дает статья 51 Градостроительного Кодекса РФ), то разрешение на строительство — документ, подтверждающий соответствие проектной документации требованиям, установленным:
- градостроительным регламентом;
- проектом планировки территории и проектом межевания территории;
Этот документ дает застройщику право осуществлять строительство, а также реконструкцию объекта капитального строительства, за исключением случаев, предусмотренных Градостроительным Кодексом.
В Москве порядок получения разрешения на строительство утвержден постановлением Правительства Москвы от 17 апреля 2012 № 145-ПП «Об утверждении Административных регламентов предоставления государственных услуг города Москвы «Выдача разрешения на строительство» и «Выдача разрешения на ввод объекта в эксплуатацию»
Проектная документация должна получить согласование как со стороны санитарных служб, так и со стороны органа государственного строительного надзора каждого конкретного субъекта РФ.
Разрешение на строительство выдается органом местного самоуправления.
Рассмотрим основной перечень документов, связанных непосредственно с проектированием.
1. Ситуационный план земельного участка
Он представляет собой схему, на которой изображен земельный участок (и находящиеся на нем объекты недвижимости) относительно окружающей его местности и других объектов. На плане должны быть видны границы участка и его привязка к конкретной местности. Можно сказать, что это вид участка с высоты птичьего полета. Ситуационный план понадобится впоследствии для детального планирования здания гостиницы, а также для подключения инженерных коммуникаций (газа и электричества).
Ситуационный план земельного участка можно бесплатно заказать в местной администрации либо сделать самостоятельно. К примеру, при создании ситуационного плана для газификации можно скачать топографическую съемку земельного участка со специальных сервисов (берут данные со спутников).
Условно говоря, ситуационный план (в отличие от градостроительного) представляет собой более мелкий масштаб карты, позволяющий включить в план не только сам участок, но и прилегающую к нему территорию.
2. Эскизный план
Эскизное проектирование – это этап первоначального, визуального осмысления образа объекта строительства, результатом которого станет эскизный проект. Он состоит из первичного комплекта документов, необходимого для прохождения регламента в определенном регионе и получения исходной разрешительной документации или архитектурного планировочного задания. Также необходимо рассчитать расход материалов на каждом этапе строительства, включая возведение фундамента, стен, перекрытий и кровли; На основании этих материалов можно будет сформировать точные требования к дальнейшему проектированию.
3. Инженерные изыскания
Необходимо сделать расчеты всех инженерных систем и коммуникаций будущего здания, в том числе рассчитать мощность отопительного оборудования, просчитать неизбежные потери тепла, сделать расчеты приточно-вытяжных систем и др.
4. Градостроительный план земельного участка (ГП) (ему посвящена Статья 57.3 Градостроительного Кодекса РФ).
Это важнейший документ, который выдается органом местного самоуправления по месту нахождения земельного участка и необходим для того, чтобы сооружение соответствовало не только многочисленным архитектурным правилам, но и требованиям безопасности. ГП представляет собой проект межевания, в котором учитываются основные параметры имеющегося участка. Составляется как перед строительством нового здания, так и перед осуществлением реконструкции. В ГП содержатся, в частности, сведения о границах территории, построенных объектах (их размерах и количестве этажей), имеющихся коммуникациях, транспортных развязка др. ГП действителен в течение трех лет со дня его получения.
Рабочая документация: Техническое задание, смета. Выход на стройплощадку.
Получив Разрешение на строительство, Заказчик готовит для Подрядчика подробное Техническое задание на проектирование гостиницы.
Базовые пункты документа включают в себя:
- Описание номерного фонда
- Описание общественных зон
- Требования к уровню отделки номеров и общественных зон
- Спецификация обслуживающей инфраструктуры
- Архитектурное решение объекта
- Конструктивное решение объекта
- Инженерные системы
- Благоустройство территории
В данной статье мы рассмотрели общие вопросы, касающиеся планировки гостиниц.
***
Регламенты при строительстве гостиниц
Градостроительные:
- Градостроительный кодекс Российской Федерации (приоритетный)
- СП 42.13330.2011 «Градостроительство. планировка и застройка городских и сельских поселений»
- Водный кодекс Российской Федерации
Функционально-технологические:
- СП 118.13330.2012 «Общественные здания и сооружения»
-
СП 257.
1325800.2016 «Здания гостиниц. Правила проектирования» - Приказ Министерства Культуры РФ № 1215 «Об утверждении порядка классификации объектов туристской индустрии, включающих гостиницы и иные средства размещения, горнолыжные трассы и пляжи, осуществляемой аккредитованными организациями»
- ГОСТ 30389-2013 «Предприятия общественного питания. Классификация и общие требования»
- СП 113.13330.2016 «Стоянки автомобилей»
- СП 59.13330.2016 «Доступность зданий и сооружений для маломобильных групп населения»
Санитарно-эпидемиологические:
- СП 131.13330.2012 «Строительная климатология»
- СП 52.13330.2016 «Естественное и искусственное освещение»
- СанПиН 2.2.12.1.1.1278-03 «Гигиенические требования к естественному, искусственному и совмещенному освещению жилых и общественных зданий»
-
СП 51.13330.
2011 «Защита от шума» - СП 2.3.6.1079-01 «Санитарно-эпидемиологические требования к организациям общественного питания, изготовлению и оборотоспособности в них пищевых продуктов и продовольственного сырья»
- СанПиН 2.4.4.3155-13 «Санитарно-эпидемиологические требования к устройству, содержанию и организации работы стационарных организаций отдыха и оздоровления детей»
- СанПиН 2.1.2.2646-10 «Санитарно-эпидемиологические требования к устройству, оборудованию, содержанию и режиму работы прачечных»
Нормативы пожарной безопасности:
- СП 4.13130.2013 «Ограничение распространения пожара на объектах защиты»
- СП 2.13130.2012 «Обеспечение огнестойкости объектов защиты»
- СП 1.13130.2009 «Системы противопожарной защиты. Эвакуационные пути и выходы»
- СП 8.13130.2009 «Источники наружного противопожарного водоснабжения»
-
СП 10.
13130.2009 «Системы противопожарной защиты. Внутренний противопожарный водопровод»
Нормативы, регулирующие конструктивные решения:
- СП 14.13330.2014 «Строительство в сейсмических районах»
- СП 20.13330.2011 «СНиП 2.01.07-85 Нагрузки и воздействия»
- СП 22.13330.2011 «СНиП 2.02.01-83 Основания зданий и сооружений»
- СП 24.13330.2011 «СНиП 2.02.03-85 Свайные фундаменты»
- СП 63.13330.2012 «СНиП 52-01-2003 Бетонные и железобетонные конструкции»
- СП 15.13330.2012 «СНиП II-22-81 Каменные и армокаменные конструкции»
- СП 64.13330.2011 «СНиП II-25-80 Деревянные конструкции»
Нормативы, регулирующие инженерные решения:
- СП 31.13330.2012 «СНиП 2.04.02-84 Водоснабжение. Наружные сети и сооружения»
-
СП 32.13330.2012 «СНиП 2.04.03-85 Канализация.
Наружные сети и сооружения» - СП 30.13330.2012 «Внутренний водопровод и канализация зданий»
- СП 124.13330.2012 «СНиП 41-02-2003 Тепловые сети»
- СП 62.13330.2011 «Газораспределительные системы»
- СП 89.13330.2012 «Котельные установки»
- СП 41-104-2000 «Проектирование автономных источников теплоснабжения»
- СП 60.13330.2012 «СНиП 41-01-2003 Отопление, вентиляция и кондиционирование»
- СП 76.13330.2016 «СНиП 3.05.06-85 Электротехнические устройства»
Правила устройства электроустановок (ПУЭ):
- СП 134.13330.2012 «Системы электросвязи зданий и сооружений. Основные положения проектирования»
- СП 265.1325800.2016 «Коллекторы коммуникационные. Правила проектирования и строительства»
План небольшого отеля | Бесплатные шаблоны плана отеля
План этажа с 3 спальнями
92625
332
Схема школы
85162
312
План дома
68928
248
План этажа торгового центра
68867
277
План небольшой гостиницы
39448
227
План домашней электропроводки
39106
246
Планировка офиса
37709
216
План этажа с 2 спальнями
25835
188
Ландшафтный дизайн
23839
167
Дизайн салона План этажа
23700
198
Доступ к охране склада
23564
239
Схема электропроводки в подвале
22354
177
План этажа сада
21728
238
Дизайн тренажерного зала, план этажа
19460
202
План электропроводки дома
18345
182
План экстренной эвакуации
17844
181
Электрическая схема
16020
163
Схема посадочных мест в ресторане
15469
174
План этажа с размерами
15257
175
Планировка кухни
13747
179
План экстренной помощи больницы
12916
185
План этажа ресторана
12877
153
Дизайн-макет столовой
12374
154
Домашний план действий при пожаре и чрезвычайных ситуациях
12192
165
Офисное здание
10788
162
Цветной план этажа
10393
159
Схема театрального кресла
10378
157
Флаер с планом этажа
10004
176
План эвакуации при пожаре в библиотеке
9950
164
План потолка в отражении дома
9937
162
Скачать бесплатно шаблоны планов дома онлайн
Это платформа для обмена шаблонами планов этажей, на которой вы можете делиться великолепными схемами планов этажей.
Все примеры общих планов этажей представлены в векторном формате и доступны для редактирования и настройки. Исследуйте то, что подходит вам лучше всего, и сохраните для собственного использования.
Попробуй сейчас Купить сейчас
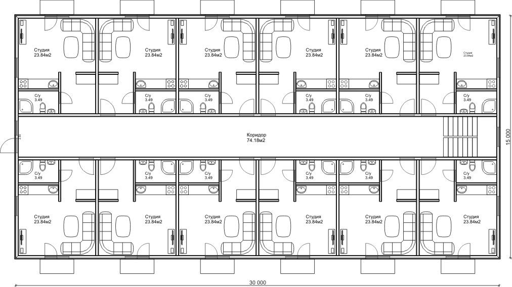
План этажа отеля | План этажа мини-отеля. Примеры планов этажей | План гостиницы. Примеры плана отеля
Этот образец иллюстрирует план этажа мини-отеля, представляющий расположение гостиничных номеров, столовой и других помещений, все они меблированы. Это необходимо для строительства отеля и полезно для бронирования номеров для проживания.
Этот образец был создан в программе для построения диаграмм и векторной графики ConceptDraw DIAGRAM с использованием решения Floor Plans Solution из области Building Plans в ConceptDraw Solution Park.
Но не имеет значения, какой план отеля вы хотите проиллюстрировать в виде плана этажа, вы всегда можете сделать это с помощью ConceptDraw DIAGRAM, особенно это может быть просто сделать с помощью решения «Планы этажей», которое можно загрузить из Планы зданий.
территория парка решений ConceptDraw.
Если вам нужно сделать план своего будущего отеля или сделать это для кого-то другого, то вы всегда можете найти способ сделать такой шаблон очень быстро и получить в итоге очень красивый результат. Какой бы тип отелей вы ни хотели проиллюстрировать в виде плана этажа, вы всегда можете сделать это с помощью приложения для рисования ConceptDraw DIAGRAM.
Строительство, ремонт и реконструкция дома, квартиры, офиса или любого другого здания или помещения начинается с разработки детального плана здания и планов этажей. Правильная и быстрая визуализация строительной идеи важна для дальнейшего строительства любого здания.
Чтобы спланировать, как будет выглядеть ваш будущий ресторан, включая всю мебель, стены, окна, двери и другие элементы интерьера, вам понадобится программное обеспечение ConceptDraw, которое может быть полезным и полезным при создании такого плана.
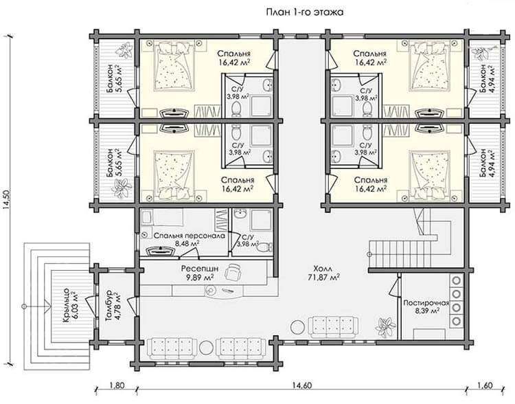
В этом примере показано расположение мебели и бытовой техники на плане этажа отеля.
«Гостиница — это заведение, предоставляющее оплачиваемое проживание на краткосрочной основе. Предоставление в прошлом базового жилья, состоящего только из комнаты с кроватью, шкафом, столиком и умывальником, в значительной степени заменено номера с современными удобствами, включая ванные комнаты и кондиционер или климат-контроль.Дополнительными общими удобствами, которые можно найти в гостиничных номерах, являются телефон, будильник, телевизор, сейф, мини-бар с закусками и напитками, а также удобства для приготовления чая и кофе. Роскошные удобства включают халаты и тапочки, выбор подушек, две раковины и джакузи. В более крупных отелях могут быть дополнительные удобства для гостей, такие как бассейн, фитнес-центр, бизнес-центр, уход за детьми, конференц-залы. и социальные услуги». [Гостиница. Википедия]
Пример «План этажа мини-гостиницы» был создан с использованием программного обеспечения для построения диаграмм и векторной графики ConceptDraw PRO, дополненного решением Basic Floor Plans из области Building Plans в ConceptDraw Solution Park.
План этажа
Используемые решения
Строительные планы >
Основные планы этажей
В этом примере показано расположение мебели и бытовой техники на плане этажа отеля.
«Гостиница — это заведение, предоставляющее оплачиваемое проживание на краткосрочной основе. Предоставление в прошлом базового жилья, состоящего только из комнаты с кроватью, шкафом, столиком и умывальником, в значительной степени заменено номера с современными удобствами, включая ванные комнаты и кондиционер или климат-контроль.Дополнительными общими удобствами, которые можно найти в гостиничных номерах, являются телефон, будильник, телевизор, сейф, мини-бар с закусками и напитками, а также удобства для приготовления чая и кофе. Роскошные удобства включают халаты и тапочки, выбор подушек, две раковины и джакузи. В более крупных отелях могут быть дополнительные удобства для гостей, такие как бассейн, фитнес-центр, бизнес-центр, уход за детьми, конференц-залы.
и социальные услуги». [Гостиница. Википедия]
Пример «План этажа отеля» был создан с использованием программного обеспечения для построения диаграмм и векторной графики ConceptDraw PRO, дополненного решением Floor Plans из области Building Plans в ConceptDraw Solution Park.
План этажа
Используемые решения
Строительные планы >
Основные планы этажей
Программное обеспечение для макетов магазинов — Создавайте макеты магазинов, планограммы, торговые площади с помощью ConceptDraw.
Вам не нужно быть художником, чтобы создавать великолепные макеты магазинов. В ConceptDraw есть много примеров и шаблонов для рисования планов этажей и макетов ресторанов. Вы можете быстро создавать индивидуальные проекты макетов магазинов, дизайнов магазинов, планов этажей кафе, планов этажей ресторанов, планов этажей дома, планов этажей офисов с помощью нашей программы дизайна магазина.
ConceptDraw DIAGRAM — это мощное программное обеспечение для построения диаграмм и векторной графики. ConceptDraw DIAGRAM, расширенный с помощью Floor Plans Solution из области Building Plans, стал идеальным программным обеспечением, которое поможет вам быстро и легко создать план этажа для любого помещения.
Ресторан – это особое место для отдыха и развлечений. Его дизайн и атмосфера должны быть уникальными. Планировка, дизайн, музыка, кухня, сервис создают незабываемую атмосферу уюта, гармонии, удобства.
Вы можете быстро создавать индивидуальные проекты: планировки ресторана, планы этажей ресторана,
Дизайн ресторана с помощью нашего программного обеспечения для планирования этажей ресторана.
Решение «Компьютеры и сети» из области «Компьютеры и сети» в ConceptDraw Solution Park содержит примеры, шаблоны и библиотеку векторных трафаретов с символами оборудования локальной вычислительной сети (LAN) и беспроводной локальной сети (WLAN).
Используйте его для построения диаграмм топологии физической и логической сети для проводных и беспроводных компьютерных сетей связи.
Программное обеспечение для построения диаграмм и векторного рисования ConceptDraw DIAGRAM предлагает решение для планов этажей из раздела «Планы зданий» в ConceptDraw Solution Park, позволяющее быстро и просто создавать собственные планы этажей.
Если вам необходимо создать план здания, вы можете нарисовать его вручную на листе бумаги, а также можете воспользоваться специальными программами.
С помощью ConceptDraw вы можете создать план здания любой сложности. Благодаря специальным шаблонам и библиотекам объектов это не займет у вас много времени и не потребует специальных навыков.
Существует два основных способа создания плана этажа: нанять дизайнера интерьера или разработать дизайн самостоятельно. Профессиональная помощь может стоить довольно дорого, а результат не всегда может стоить денег. Давайте разберемся, какие навыки необходимы для самостоятельного создания дизайна интерьера.
В первую очередь это базовые знания правил композиции. Он помогает скомпоновать, расставить формы и объемы интерьера, добиться в комнате баланса между свободным пространством и предметами. Это поможет правильно скомпоновать, расставить формы и объемы в интерьере, добиться баланса между свободным пространством и мебелью в комнате.
Базовая теория цвета.
Существуют строго определенные правила и законы, по которым подбираются подходящие цветовые сочетания для создания гармоничного интерьера.
Как нарисовать план этажа
Этот образец планировки помещения был разработан на основе файла Wikimedia Commons: Mandalay Bay Vista Suite.svg.
«Упрощено и абстрагировано от планов этажей в… Las Vegas Review-Journal, планы строительства залива Мандалай…» [commons.wikimedia.org/ wiki/ File:Mandalay_ Bay_ Vista_ Suite.svg]
Этот файл находится под лицензией Creative Commons Attribution-Share Alike 4.0 International. [creativecommons.org/licenses/by-sa/4.0/deed.en]
«Мандалай-Бэй — это 43-этажный роскошный курорт и казино на Лас-Вегас-Стрип в Парадайзе, штат Невада». [Мандалай Бэй. Википедия]
Пример «План этажа отеля — Mandalay Bay Vista Suite» был разработан с использованием программного обеспечения ConceptDraw PRO, дополненного решением Floor Plans из области Building Plans в ConceptDraw PRO Solution Park.
План помещения
Используемые решения
Строительные планы >
Планы этажей
Этот образец архитектурного чертежа представляет расположение холла, комнат, ресторана и кухни на плане этажа мини-гостиницы.
«Небольшие и средние гостиничные заведения, которые предлагают очень ограниченное количество удобств на территории и часто предлагают только базовые номера с минимальными услугами или вообще без них, эти объекты обычно обслуживают и продают только определенную демографическую группу путешественников, например бюджет путешественник, ищущий жилье без излишеств. В отелях с ограниченным обслуживанием часто нет собственного ресторана, но взамен они могут предложить ограниченное количество бесплатных блюд и напитков, таких как континентальный завтрак на территории отеля». [Гостиница. Википедия]
Пример архитектурного чертежа «План этажа мини-отеля» был создан с использованием программного обеспечения для построения диаграмм и векторной графики ConceptDraw PRO, дополненного решением Floor Plans из области Building Plans в ConceptDraw Solution Park.
Архитектурный чертеж
Используемые решения
Строительные планы >
План этажа кафе и ресторана
При разработке планировки офиса важно правильно подобрать офисное помещение. Следует учитывать, что некоторые планировки подходят для частого общения сотрудников и не подходят для высокого уровня концентрации, и наоборот, личные кабинеты не удобны для частого общения.
Инструменты для рисования зданий ConceptDraw — легко рисуйте простые планы планировки офиса с помощью элемента дизайна плана планировки офиса. Используйте его для рисования планов этажей дизайна интерьера офиса, расстановки офисной мебели и оборудования, а также чертежей для управления помещениями, управления переездами, инвентаризации канцелярских принадлежностей, инвентаризации активов, планирования офисных помещений.
Как нарисовать план этажа
Грамотное планирование – залог успеха в организации банкетов. Нужно рассчитать бюджет, составить список гостей, спланировать развлекательные мероприятия и заказать подходящее место для мероприятия. Немаловажное значение имеет и правильная планировка банкетного зала.
ConceptDraw DIAGRAM предоставляет решение «Планы кафе и ресторанов» из области «Планы зданий» в парке решений ConceptDraw.
ConceptDraw — это лучшее программное обеспечение для создания сетевых диаграмм, которое имеет множество примеров и шаблонов сетевой архитектуры :
Схема сети GPRS,
Схема работы GPS,
Диаграмма гибридной сети,
Сеть мобильной спутниковой связи,
Схема сети мобильного телевидения,
Сетевая веб-схема,
Схема беспроводной широкополосной сети,
Сетевая схема беспроводного маршрутизатора.
1325800.2016 Здания гостиниц. Правила проектирования (утвержден и введен в действие Приказом Министерства строительства и жилищно-коммунального хозяйства Российской Федерации (Минстрой России) от 20 октября 2016 г. N 724/пр). В этом документе даются ссылки на ГОСТы и другие Своды Правил (около 50 нормативов)
В пешей доступности должны быть торговые комплексы, административные здания. Если основная ЦА бизнес-туристы, то плюсом проекта будет наличие переговорных комнат.
Если ориентироваться не европейский кемпинг, то в нем предусмотрена площадка для авто-фургонов (здесь проведены электричество и вода), спортивная площадка, душ, туалет, кухня для общего пользования, прачечная, сейфовые ячейки и др. Понятно, что в России все пока намного проще.
1325800.2016 «Здания гостиниц. Правила проектирования»
2011 «Защита от шума»
13130.2009 «Системы противопожарной защиты. Внутренний противопожарный водопровод»
Наружные сети и сооружения»