Ванная комната в панельном доме дизайн фото: Ванная комната в панельном доме: варианты дизайна типового санузла
Как правило, ванные комнаты в панельных домах являются достаточно маленькими помещениями. Поэтому важно тщательно продумать их дизайн до самых мельчайших деталей, чтобы создать максимально комфортное и функциональное пространство. Современный рынок предоставляет широкое разнообразие материалов для отделки комнаты, а также мебели. О том, как создать удобную и красивую ванную комнату, вы узнаете из данной статьи.
Планировка
Переделка ванной – это наиболее популярное и востребованное решение. У такого варианта планировки существуют как плюсы, так и недостатки. Рассмотрим их подробнее.
Преимуществами объединения являются:
- большая площадь помещения, которая дает свободу действий в оформлении помещения и установки мебели и техники;
- объединенную площадь можно разделить на зоны с помощью освещения и цветовых акцентов, это позволит сделать комнату более стильной и удобной;
- в такой комнате можно установить габаритную технику, сумку для одежды и дополнительный шкаф для хранения.
Что касается минусов такой планировки, они следующие:
- такая планировка может создавать очередь, если в квартире живут несколько человек, в один момент кто-то может захотеть принять душ, а другому нужна будет уборная;
- данный процесс требует процедуры узаконивания, поскольку в 9-этажных панельных домах удаление даже не несущей стены негативно влияет на устойчивость дома;
- удаление перегородки – пыльная процедура, которая также создает много шума.
Такая планировка лучше всего подойдет для квартиры, в которой проживает не более двух человек. Если в уборной хватает места для установки раковины, а в ванной есть пространство для стиральной машинки, то лучше оставить раздельную планировку.
Если вы решили оставить раздельный санузел и ванную, то необходимо разместить небольшую раковину в уборной. Все трубы лучше всего закрыть декоративным коробом, а над ним можно разместить шкаф или полки. Это позволит более рационально использовать полезное пространство.
А вот в ванной можно разместить более габаритные шкафы, а также стиральную машину. Таким образом, у вас получится уютное и функциональное пространство.
Что выбрать – ванну или душевую кабинку?
При выборе сантехники наиболее важным критерием является площадь комнаты. Если площадь позволяет, то можно разместить ванную. Однако не рекомендуется устанавливать слишком большие модели или джакузи. Они будут смотреться неуместно и занимать лишнее пространство.
Душевую кабину можно установить даже в самом малогабаритном помещении. На современном рынке представлен широкий выбор вариантов с разнообразными функциями. Кабинка может быть оснащена широким спектром водных струй, музыкой, подсветкой и другими полезными дополнениями. Многие модели оборудованы специальным местом для сидения.
Важно уделить внимание выбору раковины. Небольшие и компактные модели станут идеальным решением для панельных домов.
Угловые варианты позволят сэкономить пространство.
Расположение стиральной машины
Стиральная машина является неотъемлемым элементом быта, поэтому ее размещению стоит уделить особенное внимание. Она не должна мешать передвижению, также важно, чтобы ее легко было открыть. Для узких ванных часто выбирают модели с верхним открыванием.
Существует несколько наиболее популярных вариантов размещения.
- Можно установить технику под раковиной. Такое решение позволит сэкономить пространство. Но такой вариант возможен лишь при наличии навесной раковины.
- Можно установить машинку в одном из свободных углов. Над ней можно повесить полочки или шкаф. Такое решение позволит создать дополнительное место для хранения различных мелочей.
- Можно разместить машину возле душевой кабины. Такое решение лучше всего подойдет для моделей с вертикальной дверцей.
- Другим решением станет размещение встроенной стиральной машины на кухне.
Отделочные материалы
От выбора отделочных материалов зависит срок службы, а также внешний вид комнаты. А учитывая назначение ванной комнаты, материалы не должны бояться влаги. Рассмотрим наиболее популярные материалы.
Потолок
- Краска. Окрашивание потолка представляет собой достаточно трудоемкий и кропотливый процесс. Более того, он требует тщательной подготовки и является достаточно затратным. Важно выбирать краску, которая устойчива к воздействию влаги, иначе в скором времени потолок придется перекрашивать.
- Пластик. Пластиковые плиты достаточно легко устанавливаются. Они имеют привлекательный внешний вид. Однако на таком покрытии может появиться плесень и грибок.
- Полихлорвинил. Такие панели легко устанавливаются и помогают скрыть недостатки поверхности. Также они помогут скрыть вентиляцию. В сочетании с точечными светильниками потолок из полихлорвинила будет выглядеть нарядно и стильно.
- Рейки. Такой потолок устанавливается на специальный каркас. Реечный потолок имеет долгий срок службы и не теряет свой первоначальный вид.
- Плитка. Это одно из самых популярных решений, что обусловлено практичностью, долговечностью и красивым внешним видом.
- Навесные потолки. Такой потолок требует специальной установки. Он хорошо подходит для ванных комнат, поскольку не боится влаги. Более того, натяжные потолки помогут защитить комнату от затоплений сверху. Натяжные потолки выглядят привлекательно, благодаря своей блестящей глянцевой поверхности.
- Побелка. Такой метод отделки часто использовался раньше, но сейчас он является достаточно устаревшим. Такое покрытие непрактично и недолговечно. Несмотря на то, что это достаточно экономное решение, от него лучше отказаться.
Стены
Наилучшим вариантом для оформления стен является кафельная плитка. Она соответствует всем санитарным и гигиеническим нормам и имеет длительный срок службы.
Другим влагостойким решением являются пластиковые плиты. Однако они имеют более короткий срок службы и подвержены механическому воздействию.
Стены, на которые не попадают брызги, можно оформить и с помощью других материалов. Это может быть натуральное дерево, обои, венецианская штукатурка и другие материалы. Однако не стоит использовать много разных отделочных материалов, поскольку это перегрузит пространство и сделает его зрительно меньше.
Пол
Как и для стен, плитка станет лучшим вариантом для оформления пола. Существуют специальные модели с противоскользящим покрытием. Другим стильным и практичным решением станет наливной пол. Такие полы имеют широкий спектр вариантов дизайна.
Важно не экономить на отделочных материалах, чтобы ванная комната прослужила вам не один год.
Красивые примеры
- Стильно выглядит интерьер небольшой ванной в бело-коричневом цвете. Сочетание двух контрастных цветов сделает дизайн более ярким и интересным.
- Нежно и романтично смотрится ванная в красно-серой цветовой гамме.
- Красиво смотрится ванная комната, оформленная в голубых, белых и зеленых тонах. Нежные стены красиво сочетаются с изумрудным полом с необычной текстурой.
- Отличный пример оформления совмещенной ванной комнаты. Белоснежный дизайн сделает пространство зрительно шире, а пол и дверь темно-коричневого цвета станут ярким дополнением.
- Необычно смотрится белоснежный интерьер. А тонкая черная полоса зрительно поднимет потолок.
- Классическим цветовым тандемом является черно-белое сочетание. Такой интерьер всегда будет выглядеть стильно и актуально.
- Классическая ванная в бежевом цвете станет отличным решением для тонких и романтичных натур. Украсить интерьер можно с помощью нежного текстиля.
- Еще один красивый вариант отделки ванной комнаты плиткой. С помощью использования плитки разных цветов можно визуально разделить комнату на функциональные зоны.
- Мелкая мозаика всегда выглядит стильно и необычно. Зеленый, коричневый и белый цвета создают красивый и органичный тандем, который выглядит нежно и умиротворяюще.
- Богато и нарядно смотрится небольшая совмещенная ванная комната с душевой кабинкой. Имитация натурального камня на полу и стенах отлично подходит для интерьера в классическом стиле.
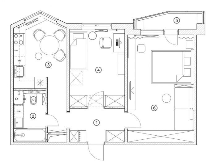
8 реальных проектов с фото и планировками
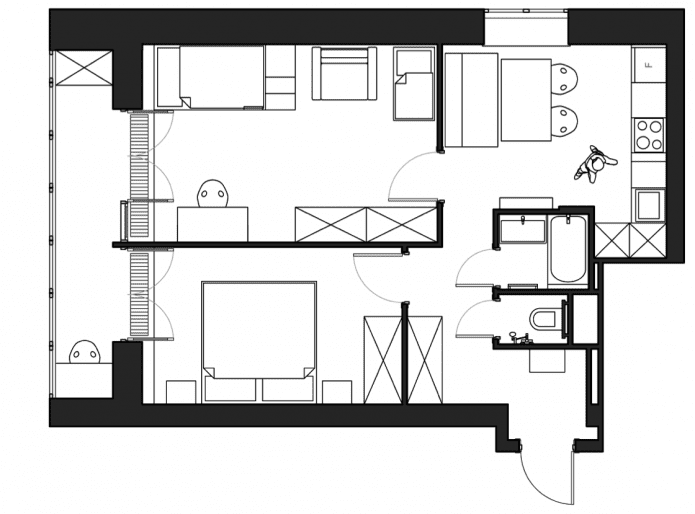
Лаконичная ванная комната
Площадь московской двушки в панельном доме – 49,6 кв. м, в ней проживает семья с двумя детьми. Во время ремонта ванную решили не совмещать с туалетом: для семьи из четырёх человек это решение было осознанным. Несмотря на маленький размер помещения, владельцы, выбирая между душевой и ванной, предпочли оставить второй вариант. Пространство расширено только визуально: стены выложены белой прямоугольной плиткой, отчего интерьер кажется светлее. Ненавязчивый акцент в виде орнамента сделан лишь в зоне душевой лейки.
Местом для хранения выступает вместительная тумба под раковиной: все бытовые средства убраны внутрь, чтобы не перегружать маленькую ванную деталями. Лаконичная отделка в нейтральных цветах позволяет менять обстановку без труда и особых затрат: стоит только повесить новую шторку над ванной и другие полотенца.
Дизайн «Студия Flatforfox». Фотограф Екатерина Любимова.




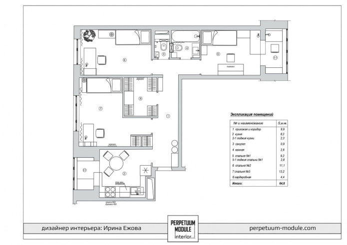
Совмещённый санузел с отделкой в природных тонах
Площадь трёхкомнатной квартиры в панельном доме – 65 кв. м. Здесь удалось разместить целых два полноценных санузла: заказчицы (женщина с двумя дочками) любят принимать гостей, поэтому в обоих помещениях установили унитазы, а в одном из санузлов – небольшой рукомойник с зеркалом.
На пол ванной уложили однотонный керамогранит, а стены облицевали двухцветной плиткой. Верх стандартный белый, а низ – серый со сложным зелёным подтоном. Акцентами служит мебель с текстурой дерева и шторка с растительным орнаментом. Тумба под раковину и унитаз – подвесные. Сантехприбор примыкает к ненесущей стене из пеноблоков, в которой спрятана инсталляция. Благодаря подвесным элементам помещение кажется просторней, к тому же его легче убирать.
Для отделки использован керамогранит Marazzi и краска Kansay Paint. Тумба, раковина, ванна и унитаз Jacob Delafon.
Дизайнер Ирина Ежова. Фотограф Дина Александрова.





Ванная комната с яркими деталями
Метраж квартиры в панельном доме – 50 кв. м. В этой двушке проживают молодые супруги, у которых недавно появился малыш. Главное требование к дизайнеру – простота интерьера с минимальными затратами сил и времени на уборку.
Ванная комната, как и вся квартира, получилась светлой, но с контрастными элементами насыщенных цветов. В качестве отделки использована светло-голубая краска, но в мокрой душевой зоне и нижнем участке стены уложена квадратная плитка. При входе в помещение взгляд упирается в яркое зеркало и синюю тумбу. Её глянцевый фасад и облегчённый дизайн работают на зрительное расширение пространства.
В проекте использована краска Little Greene, плитка Bardelli и Сezzle. Мебель «Астра-Форм», санфаянс Roca.
Дизайнер Мила Колпакова. Фотограф Евгений Кулибаба.



Изысканная «мраморная» ванная с душевой
Трёхкомнатная квартира площадью 81 кв. м находится в панельном доме серии П-44Т. В ней проживает деловая женщина с сыном-первоклассником. Основная стилистика интерьера – американская классика. Внутренние перегородки несущие, поэтому перепланировка не потребовалась. Санузлы были объединены предыдущими жильцами.
Хозяйка попросила заменить ванну на душевую кабину с прозрачными дверцами. Стиральную машинку удалось разместить под единой столешницей из искусственного камня. Унитаз установили подвесной, а для хранения вещей и маскировки труб спроектировали хозяйственные шкафы. Ванная облицована керамогранитом, имитирующим мрамор, отчего обстановка выглядит благородно и изысканно.
Напольное покрытие и стены – керамогранит Panaria. Мебель «Мастерская-13», сантехника Laufen, освещение бра Eichholtz. Душевая перегородка Vegas.
Дизайнер Елена Бодрова. Фотограф Ольга Шангина.





Проект совмещённого санузла в синих тонах
Небольшая двушка 51 кв.м находится в панельном доме серии П44-Т и принадлежит молодой семье с ребёнком. Заказчики воспользовались возможностью перепланировки в санузле и объединили ванную с туалетом. Это решение позволило сконструировать на освободившейся площади шкаф, в который спрятали стиральную машину (отдел справа от выдвижных ящиков). Вся система хранения продумана до мелочей: использован каждый сантиметр, в том числе место над подвесным унитазом. Мебель изготовлена по эскизам авторов проекта.
Для отделки использована плитка Marazzi Italy и краска Little Greene, на полу уложен керамогранит Wow. Санфаянс Roca.
Дизайн студии «Общая площадь».





Ванная в английском стиле
Владельцы трёшки площадью 75 кв. м. тоже столкнулись с ограничениями при перепланировке квартиры в панельном доме, поэтому поменяли только санузел, объединив туалет с ванной. Получившееся помещение увеличилось до 4 кв.м.
Хозяйка квартиры – дизайнер, поэтому сама создавала интерьер для себя, мужа и дочери. Ванная комната облицована белым «кабанчиком», но это не дань моде, а результат многолетней любви владелицы к отделке, которую впервые увидела у лондонских друзей. Элегантности интерьеру придаёт полоточный карниз и напольный ковёр из разноцветных керамических элементов. Главным украшением ванной выступает тёмно-изумрудная тумба под раковину. Шторка для ванны имеет два слоя: внешний декоративный и внутренний водонепроницаемый.
Для отделки использована краска Benjamin Moore, плитка Adex и TopCer. Тумба Caprigo, зеркало «Сигнум», санфаянс Villeroy & Boch.
Дизайнер Нина Величко.




Монохромная ванная в полоску
Метраж этой «двушки» в панельном доме – 51 кв.м. Здесь проживает семейная пара с маленькой дочкой и кошкой. Вся квартира выдержана в чёрно-белой гамме с вкраплением золотых элементов, и ванная комната не исключение. Используя вертикальный «кабанчик», уложенный контрастными полосами, дизайнер оптически увеличила высоту помещения. Золотые элементы на панно и плафонах, а также металлизированный экран для ванны, добавляют обстановке роскоши. Под керамической столешницей разместили стиральную машинку, а напротив неё расположили подвесную тумбу с раковиной.
Для стен использовали плитку Kerama Marazz. Мебель «Акванет», чугунная ванна Roca. Освещение Leroy Merlin.
Дизайнер Елена Карасаева. Фото Борис Бочкарёв.






Ванная комната в бежевых тонах
Площадь трёхкомнатной квартиры в панельном доме – 60 кв. м. В результате согласованной перепланировки ванную увеличили за счёт прохода на кухню. В помещение есть несколько ниш, получившихся из-за вентиляционного короба и встроенного шкафа в коридоре. Здесь разместили ванну со скошенным углом и стеклянной перегородкой. Стиральную машинку установили в углублении, а сверху сконструировали вместительный шкаф.
Интерьер оформлен в бежевых и белых тонах. Светлая нейтральная палитра, подвесная мебель и сантехника, а также грамотное освещение работают на визуальное расширение пространства.
Стены и пол облицованы плиткой Equipe. Тумба Dreja, корзина для белья Hoff, ванна Riho.
Дизайнер Юлия Савонова. Фотограф Ольга Мелекесцева.





Эти проекты доказывают, что несмотря на маленький метраж, ванные комнаты в панельном доме не только могут совмещать в себе всё необходимое, но и эффектно выглядеть.
правила и лучшие варианты на фото
Наверх Перепланировки- Каталог домов
- Квартира
- Спальня
- Кухня
- Столовая
- Гостиная
- Ванная комната, санузел
- Прихожая
- Детская
- Мансарда
- Маленькие комнаты
- Рабочее место
- Гардеробная
- Библиотека
- Декорирование
- Мебель
- Аксессуары
- Загородный дом
- Ландшафт
- Системы хранения
- Коридор
- Уборка
- Фундамент
- Кровля
- Стены
- Окна
- Двери и перегородки
- Потолок
- Балконы и лоджии
ремонт, варианты отделки, лучшие идеи
Загрузка…Разберемся с вопросом, как интересно переделать ванную комнату в панельном доме. Расскажем, как лучше сделать ремонт, какие бывают варианты отделки, и покажем фото лучших идей!

Планировка
СССР нет уже 30 лет, а его наследие в виде хрущевок и панельных домов показывает, как хорошо раньше строили дома. Правда, с размерами архитекторы немного поскупились. Поэтому мы имеем небольшие кухни, такие же ванны с туалетом, неудобные прихожие.

На дворе XXI век, поэтому людям предлагают массу вариантов, как правильно и комфортно переделать ванную комнату в панельном доме. Небольшое помещение должно вместить в себя ванну (душ), умывальник, стиральную машину, шкафчик для банных принадлежностей и бытовой химии, полотенцесушители, и быть при этом удобным.
Важно! Высота помещения 2,5-2,8 м, длина не менее 1,2 м, ширина не менее 0,8 м.

Как правило, ванная и туалет в панельном доме не совмещены. Перед тем, как объединять санузел надо продумать такие нюансы:
- Количество человек, проживающих в квартире. Для семьи из 3-4 человек лучше этого не делать. Ведь кто-то захочет помыться, а кому-то надо в туалет. Совсем нелицеприятная картина…
- Вытяжка. Сможет ли она справиться с парами от горячей ванны, запахами из унитаза эффективно? Если нет, совмещать туалет и ванну не стоит.
- Состояние труб – важно, чтобы вся сантехника и подходящие к санузлам трубы, были надлежащего качества. Важный момент: при порыве труб, затоплении соседей должна быть возможность без усилий добраться ко всем коммуникациям.
- Удобство после разделения. Станет ли совместный санузел более комфортным. Объединение двух маленьких помещений не всегда увеличивает пространство.
- Перепланировка – выясните, является ли стена между ванной и туалетом несущей. Если да, то от объединения лучше отказаться. Несанкционированный снос может повлечь за собой частичное нарушение каркаса здания.
Если стена не несущая, можно совмещать туалет с ванной комнатой в панельном доме.

Перед тем, как делать перепланировку учитывайте такие особенности:
- В панельной стене находится металлический каркас, который нужно срезать болгаркой, это требует немалых затрат и физических сил. Лучше нанять бригаду строителей для этих целей.
- Проект сноса нужно согласовывать.
- После перепланировки остается большое количество мусора. А недовольство соседей – это недостаток любых ремонтных работ.

Обязательно подсчитайте, сколько будет стоить перепланировка, увеличит ли она полезную площадь помещения, и сколько времени уйдет на ремонт.
Выбор материалов
Для ремонта ванной комнаты в панельном доме нужно выбирать материалы:
- влагостойкие;
- устойчивые к разного рода моющим средствам;
- гигиеничные;
- долговечные;
- простые и удобные в уборке.
Производители предлагают широкий ассортимент не только керамической плитки, но и красок, гипсокартона, штукатурки, самоклеящейся пленки, камня натурального и искусственного.

Плитка водонепроницаемая, красивая, у нее много форм, подходит как для пола, так и для стен. Минус: легко разбить, низкий коэффициент механической прочности. Укладку лучше доверить профессионалу.
Краску выбирают по ее водонепроницаемости. Выделяют такие типы:
- акриловые недорогие;
- хлоркаучуковые – дорогие, используются в бассейнах;
- латексные и силиконовые – образуют на поверхности защитный слой, из-за повышенной паронепроницаемости не рекомендуется отделка всей ванной.

Пластиковые панели – бюджетный вариант отделки, простые в монтаже и уходе, влагостойкие, долговечные. Недостатки: повышенная горючесть, низкая механическая прочность, на поверхности собирается конденсат.
Натуральный камень – красивое, эффектное, дорогое решение. В отделке используют мрамор, песчаник, гранит, сланец. Природный материал дышит, не накапливает радиацию, влагоустойчив.

Недостаток: высокая стоимость, тяжелый, подвержен влиянию кислот и щелочей, которые содержатся в моющих средствах, требует тщательного ухода.
Искусственный камень – альтернатива натуральному. Основные преимущества:
- долговечность и прочность;
- легкость в уходе;
- внешний вид и широкий ассортимент;
- стойкий к грибкам, плесени;
- дешевле, чем натуральный камень.

Самоклеящаяся пленка – недорогой, интересный материал для отделки ванной. Стыки между полотнами закрываются синтетическими герметиками. Плюсы пленки: бюджетная, водонепроницаемая, легкая в уходе.

Недостатки: недостаточно прочная, вблизи воды лучше не использовать, выглядит как дешевый материал.
Разобравшись с материалами, перейдем к отделке.
Отделка ванной
Отделка ванной комнаты в панельном доме – вызов для строителей и дизайнеров. Как из небольшой, не всегда удобной площади сделать комфортный и полезный санузел, и при этом чтобы он красиво смотрелся? Это – задача не из легких.



Потолок
Отделка потолка может быть нескольких видов:
- покраска материалом на акриловой или силиконовой основе;
- натяжные потолки;
- пенопластовая плитка;
- подвесной потолок.
Обработка потолка краской самый недорогой и практичный вариант. Главное аккуратно оштукатурить, чтобы не было перекосов и неровностей. Такое покрытие прослужит 5-8 лет. Недостаток: страдает при затоплении соседями – покрывается желтыми пятнами и буграми.

Натяжной потолок – его легко монтировать, мусора обычно минимум, можно выбрать любой фасон: матовый, глянцевый, белого или молочного цветов, разноцветный. Эластичная ткань не даст протечь воде, если вас затопили соседи сверху. В такой потолок легко монтировать точечные светильники.

Обратите внимание! Ниша под ванной может стать местом для хранения бытовой химии, инвентаря для уборки.
Одной из разновидностей натяжного потолка считается – подвесной. Крепится на несущий внутренний элемент, либо капитально на потолок. Существует разнообразие фактур:
- органическое стекло;
- металлические панели;
- двухуровневый с использованием ПВХ-панелей.
Выглядит такой потолок стильно и аккуратно. Из-за отсутствия щелей на нем не развивается плесень. Есть возможность вставить споты – светильники с LED или обычной лампочкой. Самому с установкой не справиться – нужна бригада профессионалов.

Пенопластовая плитка – это уже не обычная покраска, но и не натяжной потолок, что-то среднее. Плюсом является самостоятельная укладка панелей. Стоит выровнять потолок и приклеить пенопластовую плитку. Фактура у такого материала разная: гладкая, рельефная, с узорами. Срок службы до 5 лет. Недостаток: при повышенной влажности, плохой вентиляции на плитке начнет расти плесень. Через пару лет такой потолок будет белым с вкраплениями черной плесени.
Стены
Отделка стен в ванной комнате в панельном доме предполагает использование таких материалов:
- плитка;
- краска;
- пластиковые панели.
Иногда клеят обои, но это ненадежный вариант, потому что при попадании на них воды, они могут расклеиться. Между стеной и пластиковой вагонкой может развиваться грибок. Для предотвращения появления зачищают стенку, обрабатывают противогрибковым раствором, затем антисептиком.



В местах повышенной влажности (стена над ванной, возле умывальника должна быть закрыта для предупреждения роста грибка).
Пол
Пол в ванной комнате всегда керамический. Он удобный – легко моется, при попадании влаги структура плитки не меняется, на нем не развивается плесень.

Существует три класса плитки по противоскольжению:
- красный – лучшая, первый сорт, на которой нельзя поскользнуться;
- синий;
- зеленый – третий сорт.
Мелкая, глазурованная с двойным обжигом плитка подходит для стен, но не для пола. В местах, где нет плитки, обрабатывайте гидроизоляцией во избежание развития грибка и плесени.


Важно! Для создания просторной ванной комнаты в панельном доме разделите ее на функциональные зоны.
Для отделки пола выбирают также керамогранит, который более долговечный, или наливной пол. При этом тратится много времени на отделку, зато он прочный и долговечный.

Для пола керамическая плитка большая по размеру, чем на стену. Разнообразие оттенков, рисунков позволяют подобрать необходимую цветовую комбинацию. Для визуального увеличения ванной рекомендуется укладывать плитку диагонально.
Цветовое решение
Увеличить ванную комнату в панельном доме можно не только посредством перепланировки, но и визуально, добавив светлых оттенков, зеркал и применив хитрости освещения.
Для небольшого помещения выбирают светлые, приглушенные оттенки. Дизайнеры не советуют яркие цвета – оранжевый, красный, синий. Если же выбирать контрастный оттенок, то зеленый или фиолетовый, но второй цвет должен быть белым.

Отлично гармонируют светлые стены с темным полом, или оформленным в виде шахматной доски.

Самые популярные цвета для отделки ванной комнаты зеленый, синий, голубой, светло-бежевый, коричневый.

На стенах необычно смотрится большая плитка с определенным рисунком, или выложенная настенная мозаика. Выбирая плитку, ориентируйтесь на ее удобство. Благодаря рельефу на этом материале, задерживается грязь, и ее становится очень видно окружающим. Очистить рельефную поверхность не всегда легко. На темной видно разводы.
Зеркала на стенах добавят объема помещению.


В ванной сделайте регулятор, который поможет регулировать интенсивность освещения. Используя светодиодное освещение можно не только экономить электричество, но и подсветить функциональные зоны, что добавит пространства в небольшое помещение.

Если установить потолок из оргстекла, вовнутрь можно вмонтировать подсветку. Стекло пропускает свет и равномерно его рассеивает. Создается ощущение, что потолок светится сам по себе.

Полезные советы
При совмещении ванной комнаты с туалетом в панельном доме установите по углам помещения сантехнику. В один угол душевую кабинку, или угловую ванну с глубокой раковиной. В противоположном углу станет унитаз. Модель бывает угловая (компактная), нестандартная с умывальником (вода стекает в туалетный бачок, потом используется для туалета). В последнем варианте, чистить сливной бачок надо чаще обычного. Над унитазом установите полки.

Змеевик крепится по диагонали от унитаза. Под ним устанавливается раковина. Вместо полотенцесушителя можно поставить туалетный столик.
Стиральную машину можно разместить под навесной раковиной. Важно, чтобы между раковиной и машинкой было пространство. При работе стиралки на повышенных оборотах вибрация неизбежна, что может негативно отразиться на целостности раковины.

Сейчас производители выпускают небольшие стиральные машинки 35-45 см, которые устанавливаются под раковиной. Стиралка с вертикальной открывающейся крышкой сэкономит место, она легко становится возле ванной/душевой кабинки, а слив организовывается в канализацию, или сантехнику.

Выбирая между ванной и душевой кабиной, продумайте все аспекты. Ванная позволяет лечь и расслабиться, в ней легко купать ребенка, можно установить дополнительные функции (гидромассаж). Душевая кабина полезна людям с ограниченными возможностями, пожилым, ее легко демонтировать и она занимает мало места.
Рекомендуется перенести трубы водоснабжения в стены (если это позволяет толщина и конструкция стен), а не зашивать в гипсокартон. Так можно сэкономить место.

Освободите пол от лишней мебели. Стандартный унитаз замените на подвесной, стационарную тумбу под раковиной также – на подвесную. Это облегчит уборку помещения, и ничего не будет мешать ногам.
Вооружившись полезными знаниями, как обустроить ванную комнату в панельном доме, читатель с легкостью выберет для себя наиболее комфортный и надежный вариант.
Отделка ванной в панельном доме + фото
Еще полвека назад панельные дома считали наиболее комфортным жильем в стране. Их постройка позволила обеспечить кровом многие миллионы советских граждан. Однако теперь отношение к ним стало другим. Такие квартиры имеют довольно скромные габариты. Кроме того, ветшание панельных домов ускорено вследствие экономии на их постройке.


Однако в советские времена иметь такую квартиру было намного престижнее жилья в коммуналке. Сегодня многие владельцы подобных квартир пытаются сделать проживание в них более комфортным. Стоит разобраться, какие существуют варианты отделки ванной панельном доме.
Особенности обустройства помещения
Основной отличительной чертой ванной в домах панельного типа является малая площадь. Если для расширения кухни достаточно убрать перегородку и сделать подобие студии, то расширить ванную можно только путем ее объединения с туалетом.


Объединение санузла в панельном доме
Совмещенный санузел в квартире панельного дома – популярное решение, которое обладает несколькими преимуществами и недостатками. К минусам этого решения относят:
- При проживании в квартире панельного дома нескольких человек пользоваться совмещенным санузлом не очень удобно. Один член семьи может захотеть расслабиться в ванне, а другому нужно будет воспользоваться уборной. Утром в совмещенном санузле создается очередь.
- Любой снос стен, даже не несущих, сказывается на устойчивости панельного дома. Подобные перепланировки требуют узаконивания.
- Снос перегородки – быстрая, но хлопотная процедура. В процессе работ создается много шума и грязи.
Перед принятием решения стоит ознакомиться с фото объединенного санузла в панельном доме.


Однако совмещение ванной и уборной имеет несколько неоспоримых преимуществ:
- При объединении двух комнат в панельном доме можно получить много полезной площади. Перемещаться по ней будет очень удобно.
- Появится возможность правильно распределить пространство, используя метод зонирования. Для этого в ванной устанавливают временные перегородки и экспериментируют с освещением.
- Гораздо проще устанавливать сантехническое оборудование. Появляется возможность установить в ванной бытовую технику больших размеров. В таком санузле проще разместить дополнительный стеллаж.
Объединять санузел лучше при проживании в квартире одного-двух человек. Если в санузле имеется место для монтажа угловой раковины, а после установки самой ванны останется пространство для стиральной машины, перегородку лучше оставить.


Выбор сантехнического оборудования
Основное условие – сантехника должна соответствовать габаритам ванной. Если будет установлена массивная джакузи, она будет выглядеть неуместно. Кроме того, в небольшой ванной не получится установить необходимое оборудование. В небольших комнатах лучше монтировать технику небольших размеров. При установке душа и раковин углового типа освобождается много места в центре помещения.
При выборе между кабинкой для душа и ванной в панельном доме, стоит обратить внимание на первый вариант. Современные конструкции для приема душа имеют больший функционал, чем стандартная ванна. В них можно выбирать разные типы водяных струй, слушать музыку, звонить друзьям. Многие кабинки оборудованы таким образом, чтобы принимать водные процедуры в сидячем положении.


Расположение стиральной машины
Стиральная машинка – неотъемлемый элемент домашнего хозяйства. Однако габаритный прибор разместить в небольшой ванной панельного дома сложно. Существует несколько путей решения проблемы:
- Установить стиральную машину под раковину ванной панельного дома. Такое расположение техники позволит лишний метр. Для этого придется оборудовать раковину подвесного типа.
- Разместить машинку боком к одной из стен ванной панельного дома. С другого разместить перегородку, а над ней устроить шкафчик.
- Поместить машинку вблизи с кабинки для душа. Этот вариант удобен при выборе аппаратов с вертикальным люком.
Эти советы помогут оборудовать удобную ванную в панельном доме.


Дизайн потолка ванной
Потолок с побелкой или однотонной краской, часто оборудуемый в панельных домах, способен вызывать тоску. По этой причине стоит сделать реечные потолки. С использованием этих элементов получится создать оригинальный дизайн ванной в панельном доме.
Преимущества таких конструкций:
- привлекают внимание и не надоедают;
- на рынке присутствует богатый выбор фактур и оттенков;
- они дольше служат, а ухаживать за ними намного проще;
- в них очень удобно размещать оригинальные осветительные приборы;
- можно оборудовать зеркальный потолок, способный визуально расширить пространство ванной в панельном доме.
При выборе цвета потолка ванной в панельном доме следует помнить – он должен оказаться светлее стеновых поверхностей на несколько тонов (как на фото).


Отделка стен ванной
Стандартный выбор – отделать ванную плиткой. В малогабаритных помещениях это действительно правильный выбор. Однако не стоит останавливаться на определенном виде плитки. Лучше выбрать изделия с узором или рисунком. При наличии опыта можно подобрать плитку разных оттенков, которые будут гармонично сочетаться друг с другом. Интересно выглядит поверхность с мозаичным рисунком.
Чтобы облегчить себе работу, можно оборудовать стены ванной ПВХ-панелями. Цветовых решений в этом случае будет много, но меньше, чем в случае с плиткой. Лучше выполнить стены в светлых тонах. Если поверхности будут слишком темные или яркие, визуально пространство ванной будет уменьшаться.


Обустройство пола
Пол ванной в панельном доме тоже лучше оборудовать керамической плиткой. Следует выбирать менее скользкие изделия. Чтобы не поскользнуться, на него укладывают дополнительные панели. Их выполняют из прочных пород древесины. На такие изделия можно без опаски вставать босыми ногами.
Еще одним оптимальным вариантом оборудования пола ванной является наливная технология. Однако на нее уйдет много средств. В ванной небольшой площади на материалах обычно не экономят. Для сохранения тепла в ванной устанавливают систему теплых полов.


Иллюминация и освещение
В ванных устанавливают точечные светильники. Чтобы создать нужный уровень освещения, их должно быть много. Если имеется возможность, интенсивность света регулируют специальным диммером.
Другой вариант – монтаж в ванную светильников, имеющих лампочки с холодным и теплым спектром. Первые позволят расслабиться, а вторые будут ускорять пробуждение.


Оформление интерьера ванной
Ванная в 9-этажном панельном доме может стать уютной комнатой, если правильно подойти к оформлению интерьера. При такой работе учитывают несколько моментов:
- Установить зеркала. Чем больше в ванной будет помещено отражающих поверхностей, тем больше она будет казаться. Для этого можно установить зеркала на стенах, расположенных друг напротив друга. Так создается эффект «зеркального коридора». Одну стену можно целиком отделать зеркалами. В такой ванной всегда будет светло.
- Создать ниши. Если в стенах ванной оборудовать углубления, в них можно спрятать декоративные элементы и осветительные приборы. Ниши часто выполняют функцию полок.
- Вместо стеклянных перегородок повесить шторки. Такое решение экономит пространство ванной, при этом ее получается выгодно разграничить.


- Экспериментировать с цветом и фактурой. Оформлять ванную лучше в светлых тонах. При этом допускается добавлять крупные яркие штрихи – к примеру, полоски на стенах.
- Использовать все свободное пространство. Над дверью можно расположить полочки, или установить элементы декора.
- Заменить крупную сантехнику менее габаритной. Стоит присмотреться к подвесным раковинам и унитазам.
- Использовать дверь раздвижного типа. Такие конструкции можно расположить на территории смежной комнаты, чтобы пространство ванной не занимал дверной проем.
Обустроив помещение с учетом этих советов, получится не только визуально расширить пространство, но и создать благоприятную атмосферу для приема водных процедур.


Выводы
Оптимальный вариант при отделке ванной – наклеивание на пол и стены керамической плитки. Этот материал легко очистить, он не подвержен воздействию влаги и температурных перепадов. Использование плитки позволит сделать долговечный ремонт ванной. Интересный интерьер создают с использованием декоративной штукатурки, наливных полов, подвесного потолка. Разграничивают пространство ванны шторами или перегородками. Следует очень экономно использовать свободное пространство ванной – установить дополнительные полочки, подвесную раковину и душевую кабинку.
Решение о «необъединении» ванной комнаты с туалетом является верным. Несмотря на заблуждения многих о неэффективности такого выбора, стоит четко осознавать, что данный подход будет оптимальным при функциональном зонировании. Перед началом ремонтных работ лучше просмотреть статьи, где туалет и ванна в одном стиле фото которых доказывают не только функциональные возможности, но и эстетическую принадлежность.

Главная особенность ванной комнаты в панельной квартире – это маленькая площадь.
Причины выбора раздельного санузла в квартире
Существует ряд факторов, влияющих на практичность отдельного помещения с санузлом. Вот основные из них.
- Гигиенические, санитарные нормы соблюдены.
- Планировка разделяет пространство индивидуального характера.
- Шанс образования очереди утром, вечером значительно меньше (при проживании более одного жителя).

По поводу того, стоит ли делать в квартире совмещенный санузел или нет, ведутся многочисленные споры.
Обратите внимание! Практически всегда эти два маленьких помещения невозможно объединить по причине наличия несущей стены (ее деформация, снос под запретом).
При объединении комнат человек получит возможность увеличить используемую площадь, но потеряется удобство посещения.

Если в семье проживает одновременно несколько человек, использовать совмещенный санузел не так уж удобно.
Различные варианты дизайна раздельного санузла
В одной квартире нельзя создавать дизайн санузла раздельного в совершенно отличающихся стилях. Такой подход считается дурным тоном. Чтобы не ошибиться необходимо придерживаться таких правил.

Объединение ванной с санузлом будет оправдано только в том случае, если вы живете один/одна или максимум вдвоем.
- Классический стиль всегда в моде. Этот вариант актуален для спокойных домочадцев или динамической натуры. В основе лежит элегантность, умеренные цветовые решения, плавность переходов в декоре. Комната украшается центральным элементом – ванной. На стене обязательно висит массивное зеркало в старинной оправе.
- Модерн любит обилие зеркальных поверхностей, кристаллов. Он позволяет увеличить кв метр с помощью визуального расширения.

Сантехника должна соответствовать размеру вашей ванной комнаты.
- Экологический дизайн – к нему относят кантри, эко-стиль. В обустройстве всегда применяют камень, древесину, другие натуральные материалы. Здесь главное подобрать вещи, не портящиеся от влажности.
- Для минимализма запрещено использовать кричащие формы. Мебель ставится из пластика, стекла, стали (пространство будет расширяться из-за слияния с внутренним пространством в единое целое).

Ванна должна быть небольшой, иначе она не позволит вам установить другие необходимые приборы и предметы интерьера.
- Урбанистический подход редкий гость из-за грубых материалов (полки из бетона, кирпичный шкаф без зачистки швов). Стиль подчеркнет погрешности, сделает акцент на сложной фактуре.
- Растительный интерьер поможет расслабиться. Для его реализации потребуется расстановка цветов в горшке (они должны быть влаголюбивыми), подобрать плитку с растительным сюжетом, сделать отделку с присутствием камня.
- Под старину – для создания требуется установить раковины в виде столиков, поставить «бабушкин» комод, белые раковины, латунную сантехнику. Древесина должна иметь светлый, теплый оттенок.

Современный декор здесь будет неуместен.
Для определения наиболее подходящего варианта при ремонте раздельного санузла лучше посмотреть ряд фото дизайна.

В маленьких ванных комнатах предпочтение стоит отдать малогабаритной сантехнике.
О нюансах дизайна в зависимости от размеров санузла
Если с большим пространством проблем нет, то для ремонта комнаты маленького размера (обычно это панельный, пятиэтажный дом или хрущевка) следует учесть некоторые нюансы.

Угловые раковины, душевые позволят оставить больше свободного пространства в центре комнаты.
Сочетание цветов
Яркий аксессуар в сочетании с пастельными тонами стен создаст уют, теплоту. С помощью холодных оттенков (глубокий синий, серый, темно-голубой) помещение приобретет глубину, насыщенность.

Пространство ванной комнаты можно преобразить за счет применения определенных оттенков в отделке.
Важно! Небольшая комната станет комфортней, просторней при использовании белого, бежевого цвета.
Керамическая плитка в отделке
Иллюзия простора будет появляться при кладке плитки двадцать на тридцать сантиметров. Если устанавливать плитку горизонтально – стены расширяются, вертикально – приподнимается потолок.

Главная задача при обустройстве маленькой ванной комнаты без туалета – это правильная организация пространства.
Выбор оборудования, декора
Маленький санузел визуально станет больше при наличии зеркал, прозрачных, зеркальных элементов. В выборе сантехники предпочтение отдается компактности (ванная углового типа, душевая кабина), чтобы можно было разместить раковину, стиральную машинку.

Выбирая между ванной и душевой кабиной, лучше отдать предпочтение последней.
Выбор отделочных материалов
Функциональность данной комнаты направлена на определенное целевое назначение – прием ванной, душа, что влечет за собой соответствие нескольким факторам.
- Влагостойкость на оптимальном уровне, практичность.
- Эстетическая привлекательность.
- Высокое качество.
- Способность переносить изменение температурного режима.

Спокойные и светлые оттенки позволяют сделать помещение более объемным.
Дополнительная информация: отделочные материалы современности способны привнести индивидуальность в любой интерьер, а не просто стать элементом декорирования стены, потолка, пола.
Потолок
Наиболее подходящими материалами (устойчивость к влаге) будут следующие.
- Панели пластикового типа.
- Поливиниловая плитка.
- Обои водостойкого вида.
- Декоративная штукатурка.

Используйте орнамент в декоре деликатно, не перегружая небольшое пространство ванной.
Обратите внимание! Для потолка подойдет ПВХ натяжной потолок. Он хорошо относится к влажной среде, плюс визуально увеличивает помещение.
Напольное покрытие
Основные требования.
- Износостойкость повышенного уровня.
- Прочность (материал обязан выдерживай вес сантехники, мебели).

Напольная плитка для ванной комнаты должна быть как можно менее скользкой.
Оптимально применять плитку клинкерного, керамического типа. Для бюджетного варианта допустимо использование линолеума с высоким классом износостойкости, влагостойкости.

Чтобы ваши ноги всегда оставались в тепле и вы не подхватили простуду холодной зимой, в ванной рекомендуется установить систему теплых полов.
Обратите внимание на фактурность поверхности во избежание травмоопасных ситуаций!
Стены
Декорирование допускает множество вариантов, помогающих создавать индивидуальное оформление.

Классическим вариантом отделки стен в ванной комнате является отделка плиткой.
- Древесина, обработанная специальными составами против поглощения влаги.
- Инсталляции из мозаики.
- Плитка керамического типа.
- Камень (натуральный, искусственный).
- Стеклянные панели.
- Обои влагостойкие.
- Штукатурка фактурная.

Эффект визуального увеличения пространства за счет отражающих поверхностей действует и в отношении плитки для стен.
Примеры дизайна раздельного санузла в домах разного типа
В панельном доме
Ванная 2 на 2 или 1,5 на 1,3 квадратных метра может вместить стиралку, но пространство будет катастрофически мало. Выход из ситуации – над машинкой установить стеклянные полки для различных предметов. Прозрачность стекла позволит свету проходить насквозь, что даст объем. Отличным решением станут зеркала в нескольких местах.

Можно использовать плитку различных оттенков или с разным рисунком из одной коллекции, сочетающихся между собой.
В пятиэтажном доме
Ванна более 2-х кв метров квадратной формы выглядит более свободной из-за размещения всех агрегатов у стен. Середина будет пуста, что даст возможность перемещаться.

В плане цветового решения стен лучше придерживаться сдержанных, светлых тонов.
В хрущевке
Здесь комната для купания не превышает 1,9 кв м, что позволяет разместить лишь душевую кабинку или ванную, умывальник нестандартного размера.

Стиральную машинку придется перенести на кухню, в прихожую.
Во всех маленьких комнатах для купания хорошим вариантом станет стиль модерн, минимализм. Главное раздельный санузел делать в одинаковом дизайне.

Это будет грамотный подход к ремонту, а также менее затратный по материалам.
Освещение для туалета
Светильники разделяются на следующие виды освещения.
- Декоративное.
- Верхнее.
- Локальное.

В маленькой ванной лучше использовать встроенные точечные светильники.
Они применяются вместе, что создает уют, функциональность. От площади зависит размер осветительного прибора. Цветное стекло преломляет свет, поэтому лучше выбрать прозрачный, матовый белый плафон. Подсветить следует каждую зону (одного светильника посредине будет недостаточно).

Хорошо, когда существует возможность отрегулировать интенсивность света при помощи специального диммера.
Туалет, не совмещенный с комнатой для купания, устранит много проблем, связанных с проживанием на одной площади. Раздельная планировка обязывает использовать площадь по максимуму, закладывать в нее все функциональные возможности.

Ванную в панельном доме можно сделать очень уютным и комфортным помещением.
ВИДЕО: Дизайн раздельного санузла.
50 вариантов дизайна раздельного санузла в квартире:

Планирование
Чем меньше комната, тем тщательнее необходимо всё продумать. Вооружайтесь поиском по Instagram и Pinterest. Изучите побольше работ дизайнеров, «примерьте» на свою квартиру различные варианты и сделайте несколько хотя бы самодельных эскизов. Придерживайтесь принципа минимализма: меньше помещение — меньше вещей и проще цветовые решения.
Для планирования можно воспользоваться интерьерными программами, вроде PRO100, Planner 5D, Homestyler или специальными сервисами на сайте IKEA.
Что должно быть в проекте:
- размеры помещения с привязкой дверного проёма, всех выступов и ниш;
- точки подключения сантехники с указанием уровня канализационных выпусков, высоты подводки труб к смесителям, стиральной машине, смывному бачку, полотенцесушителю;
- раскладка плитки на полу и стенах;
- расположение всех позиций: унитаза, ванны или душевой, шкафов, тумб и т. п.;
- схемы трубопроводов и электропроводки.
Расчёту коммуникаций уделите максимальное внимание: например, розетку для машинки лучше разместить так, чтобы провод был не на виду.
Удачные решения
1. Заменить ванну на душ. Не на душевую кабину, а именно на душ строительного исполнения (так это правильно называется).
Его можно идеально вписать в интерьер и так «замаскировать», что зрительно он будет даже увеличивать пространство. Например, сделать ограждение и дверь кабины прозрачными, а поддон и часть стены оформить тем же кафелем, что и пол. Визуально будет казаться, что этот угол пустой: а пустые углы могут позволить себе владельцы только больших ванных комнат.
Однако дизайн и исполнение «встроенного» душа должен продумывать профессионал: здесь нужно учесть точно и все размеры, и безопасность, и технологии строительства, и то, как вода будет стекать в слив.
2. Стиральная машинка под раковиной правильной прямоугольной формы с сифоном специальной конструкции. На первый взгляд, может показаться неудобным, так как раковина окажется на высоте примерно 90 сантиметров. Но это даже естественнее с точки зрения физиологии: не нужно сильно наклоняться (локти ровно стоящего взрослого человека ростом 170–180 сантиметров находятся на высоте примерно 97–115 см).
Со стиральной машиной можно ещё «поиграть»: вынести её в отдельную нишу в коридоре (если позволяют коммуникации) или разместить на кухне.
Идеи и дизайн ванной комнаты | Дом и Сад
Поиск близко Меню близко Дом и Сад Поиск- дома
- Украшение
- Сады
- Рецепты
- Путешествия и образ жизни
- Список
- Больше
- 100 лучших
- видео
- Соревнования
- Калико Клуб
- H & G Магазины
- журнал
- Подписывайся
Идеи для ванной Фотогалерея 2019
Инструкции: Нажмите на кнопки ниже, чтобы отсортировать по размеру и стилю. Нажмите на фото для увеличения.
Вместо узорчатых обоев, попробуйте бесплатно нарисовать простой рисунок для игривого дизайна ванной комнаты.
Фото: Mix & Match
Цветы не должны приводить ванную в грязь. Попробуйте этот элегантный дубль, используя всего несколько веточек.
Фото: 12 Oaks Blog
Вместо плитки, в следующий раз рассмотрим бетонную или каменную раковину.
Фото: 4 мужчины 1 леди
У вас темная ванная? Украсьте его акцентами, такими как желтые аксессуары в этой темной темно-синей ванной комнате.
Фото: Addicted 2 Украшение
Если вы ищете идеи для хранения небольших ванных комнат, попробуйте превратить скрытые места в полку, например, под раковиной или над туалетом.
Фото: Под моим сердцем
Если вам нравится внешний вид дерева, но вы боитесь окрашивания жесткой водой, выберите элегантный паркет из искусственного дерева, например, линолеум.
Фото: Centsational Girl
Идеи для шкафов в ванных комнатах — это элегантный дизайн. Выбираю высокие шкафы, чтобы разделить раковину Джека и Джилл.
Фото: Creekline House
Деревянные панели не только для пола. Попробуйте его на стенах своей ванной комнаты, чтобы получить эффект спа.
Фото: Financial Samurai
При поиске плитки для душа, выберите оттенок, который соответствует вашим полам, чтобы выглядеть так, чтобы он сохранялся без проблем.
Фото: Hello Splendid
Эта простая черно-белая ванная комната с небольшим количеством цветов выглядит на фотографии в рамке.
Фото: дома с Baxter
Оливковые стены в этой ванной комнате являются уникальным отличием от большинства мягких синих и серых комнат.
Фото: Houseography
Эта маленькая ванная комната превращает ванночку-лапку в звезду.
Фото: I Heart Naptime
Эта симметричная ванная комната снимет любые стрессы.
Фото: I Heart Naptime
Если пространство над вашей суетой не получает достаточного естественного света, переместите свое зеркало в другое место для более лестного обзора.
Photo by: Inspired by Charm
Не можете определиться с плиткой? Попробуйте эту идею плитки для ванной комнаты — выберите один доминирующий дизайн и один вариант акцента.
Фото: Lemon Thistle
Если ваш туалет находится в маленьком уголке, сделайте его более интересным, добавив полки и комнатные растения.
Фото: Little Green Notebook
Вам не нужно разбивать банк, чтобы получить мраморные столешницы. Магазин мраморных альтернатив, таких как кварц или гранит.
Фото: Maison De Pax
Вместо одного большого зеркала для ванной, попробуйте включить два.Один для полного обзора тела и один для крупных планов.
Photo by: One Week Bath
Принесите немного необходимой свежести в вашу ванную комнату с небольшим травяным садом.
Фото: Наш Пятый Дом
Если вы не можете выбрать между плиткой, краской или лепкой, возьмите наконечник из этой ванной, который использует все это без столкновений.
Фото: Provident Home Design
Via: Freshome
Небольшая ванная комната не означает, что вы должны пожертвовать этим большим зеркалом.Пусть это будет экспонатом в вашей комнате.
Фото: дождь на жестяной крыше
Добро пожаловать в душ вашей мечты. Встроенные полки обеспечивают чистоту и беспрепятственный доступ к душевому пространству.
Фото: This Photographers Life
Играйте с узорами в любой части вашей ванной комнаты — от стен до занавесок для душа.
Фото: Live Love DIY
Попробуйте автономную миску для раковины, которая поможет вам неожиданно изменить ситуацию и освободить встречное пространство.
Фото: Beautiful Matters
Нам нравится баланс идей цвета ванной в этом игривом пространстве.Если вы хотите красочную комнату без всяких споров о красках, найдите вместо этого плитку с ярким рисунком.
Фото: Кэссиди Хьюз Дизайн интерьера и стиль
Ничто не сравнится с ванной с лапами. За исключением разве что тосканской виллы, вдохновленной плиткой.
Фото: Эмма Ли
Via: Remodelista
Здесь много идей для украшения ванной комнаты. От графических обоев до смелых принтов и небольших цветочных композиций — выбирайте динамичную ванную комнату.
Фото: Erin Gates Design
Коврики не должны оставаться в гостиной.Принесите один в ванной для дополнительного уюта.
Фото: K Welch
Если вам повезет найти старинное зеркальное нахождение, держите его в центре внимания.
Фото: Made By Girl
Не можете прийти к компромиссу в отношении плитки для ванной комнаты? Соедините яркий образец с нейтральным, и вам не придется выбирать.
Фото: Меган Пахарь
Через:
.13 Идеи дизайна ванной комнаты | Домостроение
Если вы планируете ванную комнату или отдельную ванную комнату для своего проекта самостоятельного строительства или реконструкции, тщательное планирование и внимание к деталям могут привести к стильному и функциональному пространству. Этот выбор дизайнерских решений поможет вам создать действительно уникальную ванную комнату.
1. Зеркальные стены ванных комнат
Зеркала — это не просто практическое дополнение — они хорошо расположены, их можно использовать для создания иллюзии пространства в маленькой ванной комнате и отражать свет вокруг комнаты.
Более того, большие зеркала могут представлять собой экономичное решение по сравнению с укладкой плитки на площади.
(Фото предоставлено Саймоном Максвеллом)2. Рассмотрим встроенное хранилище
Встроенные полки и ниши полезны не только для демонстрации бутылок и других изделий, но и могут добавить интерес к схеме ванной комнаты.
(Фото предоставлено Джереми Филлипсом)3. Твердые поверхности ванной
Твердые поверхности были популярны на кухне для некоторых, и, как и многие другие тенденции, начинающиеся на кухне, эта пробивается в ванную, обеспечивая гигиеническая, водостойкая поверхность в этой комнате тоже.
Раковина Duravit’s P3 Comforts обеспечивает просторную площадь для хранения косметики и бутылок (Фото: Duravit)4. Сделайте заявление с использованием смелой плитки для ванной комнаты
Смелая плитка или цветовая гамма могут поднять ванную комнату от обычного до необычного — как эта ванная комната показывает.
Здесь цементные плитки в стиле энкаустика (от американской компании Rustico Tile & Stone) были соединены с зеркальными стеновыми панелями с античными зеркалами (от Руперта Бевана) и зеркальной ванной (ванна Tay от Drummonds) для создания потрясающей ванной комнаты.
(Фото предоставлено Drummonds)5. Умное хранение в ванной комнате
Умное и обильное хранение — это хороший способ обеспечить бесперебойную поверхность вашей ванной комнаты (и не станет домом для множества полупустых бутылок).
Корзины для белья могут быть неопрятным дополнением, но это аккуратное решение от Hammonds Furniture позволяет эффективно использовать пространство под ванной.
(Фото предоставлено: Hammonds Furniture)6. Стильная парилка
Эксклюзивные решения Aqata Опция выемки для раздвижных дверей ES300 подходит для мощных душевых кабин, форсунок и пара, то есть вы можете превратить альков в ванной комнате в мульти душевая и паровая камера.
Плиточный гостиный уголок является дополнительным дополнением.
(Фото предоставлено: Aquata)7. Ввести частичные стены
Когда дело доходит до проектирования новой ванной комнаты, сантехнику не всегда нужно размещать у стен. Частичные перегородки могут быть использованы для зоны большой ванной комнаты и скрытия сантехники.
Этот внешний вид требует планирования с самого начала, чтобы обеспечить правильное размещение горячих и холодных кормов, а также отходов.
Эта частичная перегородка обеспечивает большую душевую кабину с одной стороны, удваиваясь как место для крепления настенных кранов для ванны Drummonds ’ на другой (Изображение предоставлено: Drummonds)8.Решения для наклонных потолков ванных комнат
Комнаты с наклонными потолками (например, переоборудованные чердаки и дома со сводчатыми потолками) могут быть использованы в ванных комнатах. Карнизное пространство может обеспечить идеальное место для установки сантехники и / или создания встроенных ниш или хранилищ.
Ванная комната, расположенная ниже, была создана в лофте; домовладельцы максимально использовали пространство с роскошной душевой кабиной, а также темные плитки, чтобы помочь определить наклонный потолок.
(Фото предоставлено Саймоном Максвеллом)9.Декоративные экраны
Душевые экраны не должны быть скучными — как доказывает этот привлекательный дизайн.
Art Glass экраны, доступные от Альтернативные ванные комнаты , доступны для ванной и душевых панелей, в двух вариантах. Показана душевая панель Oslo в дизайне «Япония». (Фото предоставлено: Альтернативные ванные комнаты).10. Используйте альковы
. Альковы могут быть использованы в качестве душевых кабин, как показывает эта ванная комната.
Здесь душ был установлен в нише идеального размера (фото предоставлено Джереми Филлипсом)11. Бассейновые идеи для детей
Семейные ванные комнаты — особенно в тех домохозяйствах с маленькими детьми — должны быть веселыми и функциональными , как показывают эти примеры.
Эта красочная раковина с умывальником была создана в HI-MACS, акриловом каменном композите, который имеет гигиеническую отделку и водонепроницаемые свойства — идеально подходит для детей.
(Фото предоставлено LG Hausys)12.Представьте Natural Light
Строительство нового дома или расширение существующей собственности дает возможность проектировать в окнах то, что и где вам нужно, вместо того, чтобы обойти то, что уже есть.
Тем не менее, могут быть проблемы с пропуском и конфиденциальностью — но есть решения, поскольку эти ванные комнаты показывают:
Два полупрозрачных окна «прорези» обеспечивают рассеянное естественное освещение этой ванной комнаты, но не ставят под угрозу конфиденциальность , () Самостоятельное строительство было спроектировано Hall + Bednarczyk Architects.) (Фото предоставлено Саймоном Максвеллом)13. Ванные комнаты с деревянным покрытием
Облицовка деревом была большой новостью в интерьере в последние годы, но этот вид требует внимания в ванной комнате.
В ванных комнатах с душем или ванной, которые, как правило, более влажные, чем в гардеробах, древесину следует использовать с осторожностью и в местах, которые не вступают в непосредственный контакт с водой.
Гардеробные, однако, там, где обычно есть минимальный риск влажности и брызг, могут быть хорошими местами для внедрения деревянной облицовки.
Эта ванная комната была разработана TG Studio . «Как правило, лучше всего использовать лиственные породы и всегда обеспечивать очень хорошую вытяжку воздуха», — говорит Томас Грием, директор TG Studio (Изображение предоставлено TG Studio). ,