ΠΠ· ΡΠ΅Π³ΠΎ ΡΠΎΡΡΠΎΠΈΡ Π΄ΠΈΠ·Π°ΠΉΠ½ ΠΏΡΠΎΠ΅ΠΊΡ: Π‘ΠΎΡΡΠ°Π² ΠΈ ΡΡΠ°ΠΏΡ ΡΠ°Π·ΡΠ°Π±ΠΎΡΠΊΠΈ Π΄ΠΈΠ·Π°ΠΉΠ½ ΠΏΡΠΎΠ΅ΠΊΡΠ° Π΄Π»Ρ ΠΈΠ½ΡΠ΅ΡΡΠ΅ΡΠ°
Π‘ΠΎΡΡΠ°Π² ΠΏΡΠΎΠ΅ΠΊΡΠ° Π½Π° Π΄ΠΈΠ·Π°ΠΉΠ½ ΠΈΠ½ΡΠ΅ΡΡΠ΅ΡΠ°
ΠΠΈΠ·Π°ΠΉΠ½-ΠΏΡΠΎΠ΅ΠΊΡ ΠΈΠ½ΡΠ΅ΡΡΠ΅ΡΠ° — ΡΡΠΎ ΠΏΠ°ΠΊΠ΅Ρ Π΄ΠΎΠΊΡΠΌΠ΅Π½ΡΠΎΠ² (ΡΡΠΊΠΈΠ·ΠΎΠ², ΡΠΎΡΠΎΡΠ΅Π°Π»ΠΈΡΡΠΈΡΠ½ΡΡ ΠΈΠ·ΠΎΠ±ΡΠ°ΠΆΠ΅Π½ΠΈΠΉ, ΡΠ΅ΡΡΠ΅ΠΆΠ΅ΠΉ ΠΈ Π²Π΅Π΄ΠΎΠΌΠΎΡΡΠ΅ΠΉ), ΠΏΠΎ ΠΊΠΎΡΠΎΡΡΠΌ Π²ΡΠΏΠΎΠ»Π½ΡΡΡΡΡ ΡΠ΅ΠΌΠΎΠ½ΡΠ½ΠΎ-ΠΎΡΠ΄Π΅Π»ΠΎΡΠ½ΡΠ΅ ΡΠ°Π±ΠΎΡΡ, ΠΏΡΠΎΠΈΡΡ ΠΎΠ΄ΠΈΡ Π½Π°ΠΏΠΎΠ»Π½Π΅Π½ΠΈΠ΅ ΠΈΠ½ΡΠ΅ΡΡΠ΅ΡΠΎΠ² ΡΠ΅Ρ Π½ΠΈΠΊΠΎΠΉ, ΠΌΠ΅Π±Π΅Π»ΡΡ, Π΄Π΅ΠΊΠΎΡΠΎΠΌ. ΠΠ½ Π²ΠΊΠ»ΡΡΠ°Π΅Ρ Π² ΡΠ΅Π±Ρ Π½Π΅ ΡΠΎΠ»ΡΠΊΠΎ ΠΊΡΠ°ΡΠΎΡΠ½ΡΠ΅ ΡΠΈΡΡΠ½ΠΊΠΈ ΠΈΠ½ΡΠ΅ΡΡΠ΅ΡΠ°, Π½ΠΎ ΠΈ ΡΠ»ΠΎΠΆΠ½ΡΠ΅ ΡΠ°ΡΡΠ΅ΡΡ, ΡΡ Π΅ΠΌΡ ΠΈ ΡΠ΅ΡΡΠ΅ΠΆΠΈ.
ΠΠΈΠ·Π°ΠΉΠ½ ΠΈΠ½ΡΠ΅ΡΡΠ΅ΡΠ° Π²ΠΊΠ»ΡΡΠ°Π΅Ρ Π² ΡΠ΅Π±Ρ:
1. Π’Π΅Ρ Π½ΠΈΡΠ΅ΡΠΊΠΎΠ΅ Π·Π°Π΄Π°Π½ΠΈΠ΅ — Π³ΡΠ°ΠΌΠΎΡΠ½ΠΎ ΡΠΎΡΡΠ°Π²Π»Π΅Π½Π½ΡΠΉ ΡΠΏΠΈΡΠΎΠΊ ΠΠ°ΡΠΈΡ ΠΏΠΎΠΆΠ΅Π»Π°Π½ΠΈΠΉ, Π΄Π°ΡΡΠΈΠΉ Π³Π°ΡΠ°Π½ΡΠΈΡ ΡΠΎΠ³ΠΎ, ΡΡΠΎ Π²ΡΠ΅ Π±ΡΠ΄Π΅Ρ Π²ΡΠΏΠΎΠ»Π½Π΅Π½ΠΎ ΡΠΎΠ³Π»Π°ΡΠ½ΠΎ ΠΠ°ΡΠΈΠΌ ΡΡΠ΅Π±ΠΎΠ²Π°Π½ΠΈΡΠΌ. ΠΠ° Π΄Π°Π½Π½ΠΎΠΌ ΡΡΠ°ΠΏΠ΅ ΠΏΡΠΎΠΈΡΡ ΠΎΠ΄ΠΈΡ Π·Π½Π°ΠΊΠΎΠΌΡΡΠ²ΠΎ Π΄ΠΈΠ·Π°ΠΉΠ½Π΅ΡΠ° ΠΈ Π·Π°ΠΊΠ°Π·ΡΠΈΠΊΠ°. ΠΠΈΠ·Π°ΠΉΠ½Π΅Ρ Π΄ΠΎΠ»ΠΆΠ΅Π½ ΠΏΠΎΠ½ΡΡΡ ΠΎΡΠ½ΠΎΠ²Π½ΡΠ΅ ΠΏΠΎΡΡΠ΅Π±Π½ΠΎΡΡΠΈ Π·Π°ΠΊΠ°Π·ΡΠΈΠΊΠ°, Π΅Π³ΠΎ Π²ΠΊΡΡΠΎΠ²ΡΠ΅ ΠΏΡΠ΅Π΄ΠΏΠΎΡΡΠ΅Π½ΠΈΡ, ΠΏΡΠΈΠ²ΡΡΠΊΠΈ, Ρ ΠΎΠ±Π±ΠΈ, ΡΠ²Π»Π΅ΡΠ΅Π½ΠΈΠ΅ ΠΈ Ρ.ΠΏ. Π ΠΌΠΎΠΌΠ΅Π½Ρ ΡΠΎΡΡΠ°Π²Π»Π΅Π½ΠΈΡ ΡΠ΅Ρ Π½ΠΈΡΠ΅ΡΠΊΠΎΠ³ΠΎ Π·Π°Π΄Π°Π½ΠΈΡ Π² ΠΎΡΠ½ΠΎΠ²Π½ΠΎΠΌ Π³ΠΎΠ²ΠΎΡΠΈΡ Π·Π°ΠΊΠ°Π·ΡΠΈΠΊ, Π° Π΄ΠΈΠ·Π°ΠΉΠ½Π΅Ρ ΡΠ»ΡΡΠ°Π΅Ρ ΠΈ ΠΏΡΡΠ°Π΅ΡΡΡ ΠΏΠΎΠ½ΡΡΡ Π΅Π³ΠΎ, ΡΡΠΎΠ±Ρ Π² Π΄Π°Π»ΡΠ½Π΅ΠΉΡΠ΅ΠΌ ΡΠ΄Π΅Π»Π°ΡΡ ΠΏΡΠΎΠ΅ΠΊΡ ΠΌΠ°ΠΊΡΠΈΠΌΠ°Π»ΡΠ½ΠΎ ΠΊΠΎΠΌΡΠΎΡΡΠ½ΡΠΌ, ΡΠ΄ΠΎΠ±Π½ΡΠΌ Π΄Π»Ρ Π·Π°ΠΊΠ°Π·ΡΠΈΠΊΠ°.
2. ΠΡΠ΅Π΄Π²Π°ΡΠΈΡΠ΅Π»ΡΠ½ΡΠ΅ Π²Π°ΡΠΈΠ°Π½ΡΡ Π΄ΠΈΠ·Π°ΠΉΠ½Π° Ρ ΡΡΠ΅ΡΠΎΠΌ ΠΠ°ΡΠΈΡ
ΠΆΠ΅Π»Π°Π½ΠΈΠΉ, ΡΡΠΎ ΠΏΠΎΠ·Π²ΠΎΠ»ΡΠ΅Ρ ΡΠΏΠ»Π°Π½ΠΈΡΠΎΠ²Π°ΡΡ ΡΠ°ΡΠΏΠΎΠ»ΠΎΠΆΠ΅Π½ΠΈΠ΅ ΠΊΠΎΠΌΠ½Π°Ρ, ΡΠ°ΡΡΡΠ°Π½ΠΎΠ²ΠΊΡ ΠΌΠ΅Π±Π΅Π»ΠΈ, ΡΡΠΈΠ»Π΅Π²ΡΠ΅ ΡΠ΅ΡΠ΅Π½ΠΈΡ.
3. 3D-Π²ΠΈΠ·ΡΠ°Π»ΠΈΠ·Π°ΡΠΈΡ — ΡΠΎΡΠΎΡΠ΅Π°Π»ΠΈΡΡΠΈΡΠ½ΠΎΠ΅ ΠΈΠ·ΠΎΠ±ΡΠ°ΠΆΠ΅Π½ΠΈΡ Ρ ΡΠ°Π·Π½ΡΡ ΡΠ°ΠΊΡΡΡΠΎΠ² ΠΊΠ°ΠΆΠ΄ΠΎΠ³ΠΎ ΠΏΠΎΠΌΠ΅ΡΠ΅Π½ΠΈΡ ΠΠ°ΡΠ΅ΠΉ ΠΊΠ²Π°ΡΡΠΈΡΡ, ΠΏΠΎΠ·Π²ΠΎΠ»ΡΡΡΠ΅Π΅ ΠΠ°ΠΌ ΡΠ²ΠΈΠ΄Π΅ΡΡ ΠΠ°ΡΡ «ΠΌΠ΅ΡΡΡ» Π² ΡΠ΅Π°Π»ΡΠ½ΠΎΡΡΠΈ, Ρ ΡΡΠ΅ΡΠΎΠΌ Π²ΡΠ΅Ρ Π΄Π΅ΡΠ°Π»Π΅ΠΉ, ΠΊΠΎΡΠΎΡΡΠ΅ Π΄ΠΈΠ·Π°ΠΉΠ½Π΅ΡΡ Ρ ΠΠ°ΠΌΠΈ ΡΠΆΠ΅ ΠΎΡΠΎΠ±ΡΠ°Π·ΠΈΠ»ΠΈ Π² Π’Π΅Ρ Π½ΠΈΡΠ΅ΡΠΊΠΎΠΌ ΠΠ°Π΄Π°Π½ΠΈΠΈ. 3D-Π²ΠΈΠ·ΡΠ°Π»ΠΈΠ·Π°ΡΠΈΡ ΡΠ²Π»ΡΠ΅ΡΡΡ Π²Π°ΠΆΠ½ΡΠΌ ΡΡΠ°ΠΏ ΠΏΡΠΈ ΡΠΎΠ·Π΄Π°Π½ΠΈΠΈ Π΄ΠΈΠ·Π°ΠΉΠ½Π° ΠΈΠ½ΡΠ΅ΡΡΠ΅ΡΠ°. ΠΠ° Π΄Π°Π½Π½ΠΎΠΌ ΡΡΠ°ΠΏΠ΅ ΠΡ ΠΌΠΎΠΆΠ΅ΡΠ΅ Π±Π΅ΡΠΏΠ»Π°ΡΠ½ΠΎ ΠΏΡΠΈΠΌΠ΅ΡΠΈΡΡ ΠΏΠΎΠ½ΡΠ°Π²ΠΈΠ²ΡΠΈΠΉΡΡ ΠΈΠ½ΡΠ΅ΡΡΠ΅Ρ ΠΈ ΠΏΠΎΡΠΌΠΎΡΡΠ΅ΡΡ Π½Π° ΡΠΊΠΎΠ»ΡΠΊΠΎ ΠΊΠΎΠΌΡΠΎΡΡΠ½ΠΎ ΠΠ°ΠΌ Π±ΡΠ΄Π΅Ρ Π½Π°Ρ ΠΎΠ΄ΠΈΡΡΡΡ Π² ΡΠ°ΠΊΠΎΠΌ ΠΏΠΎΠΌΠ΅ΡΠ΅Π½ΠΈΠΈ Ρ ΡΡΠ΅ΡΠΎΠΌ ΠΏΠΎΠ΄ΠΎΠ±ΡΠ°Π½Π½ΡΡ ΠΊΠΎΠ½ΠΊΡΠ΅ΡΠ½ΡΠ΅ ΠΎΡΠ΄Π΅Π»ΠΎΡΠ½ΡΠ΅ ΠΌΠ°ΡΠ΅ΡΠΈΠ°Π»ΠΎΠ², ΠΌΠ΅Π±Π΅Π»ΠΈ, ΠΎΠ±ΠΎΡΡΠ΄ΠΎΠ²Π°Π½ΠΈΡ.
4. Π Π°Π±ΠΎΡΠ°Ρ Π΄ΠΎΠΊΡΠΌΠ΅Π½ΡΠ°ΡΠΈΡ — ΡΠΎΠ·Π΄Π°Π½ΠΈΠ΅ ΡΠ΅ΡΡΠ΅ΠΆΠ΅ΠΉ, ΡΡ
Π΅ΠΌ, ΡΠ°Π·Π²Π΅ΡΡΠΊΠΈ ΡΡΠ΅Π½, Π²Π΅Π΄ΠΎΠΌΠΎΡΡΡ ΠΌΠ°ΡΠ΅ΡΠΈΠ°Π»ΠΎΠ², ΠΌΠ΅Π±Π΅Π»ΠΈ ΠΈ ΠΎΠ±ΠΎΡΡΠ΄ΠΎΠ²Π°Π½ΠΈΡ. ΡΡΠΎΡ ΠΏΠ΅ΡΠ΅ΡΠ΅Π½Ρ Π΄ΠΎΠΊΡΠΌΠ΅Π½ΡΠΎΠ² ΠΏΠΎΠ·Π²ΠΎΠ»ΠΈΡ ΠΠ°ΠΌ ΡΡΠΊΠΎΠ½ΠΎΠΌΠΈΡΡ Π²ΡΠ΅ΠΌΡ, ΡΠ°ΡΡΡΠΈΡΠ°ΡΡ Π±ΡΠ΄ΠΆΠ΅Ρ, ΡΡΠΈΡΡΠ²Π°Ρ Π²ΡΠ΅ ΡΠ°Π±ΠΎΡΡ ΠΈ ΠΌΠ°ΡΠ΅ΡΠΈΠ°Π»Ρ. ΠΠ»Ρ ΡΠΎΠ³ΠΎ, ΡΡΠΎΠ±Ρ Π²ΠΎΠΏΠ»ΠΎΡΠΈΡΡ Π² ΠΆΠΈΠ·Π½Ρ Π²ΡΠ΅ ΡΡΠΎ Π±ΡΠ»ΠΎ ΠΏΡΠΈΠ΄ΡΠΌΠ°Π½ΠΎ ΠΈ ΠΏΡΠ΅Π΄Π»ΠΎΠΆΠ΅Π½ΠΎ Π΄ΠΈΠ·Π°ΠΉΠ½Π΅ΡΠΎΠΌ Π½Π° ΡΡΠ°ΠΏΠ΅ 3D-Π²ΠΈΠ·ΡΠ°Π»ΠΈΠ·Π°ΡΠΈΠΈ, Π½Π΅ΠΎΠ±Ρ
ΠΎΠ΄ΠΈΠΌΠΎ Π³ΡΠ°ΠΌΠΎΡΠ½ΠΎ ΡΠ°Π·ΡΠ°Π±ΠΎΡΠ°Π½Π½ΡΠ΅ ΠΊΠΎΠΌΠΏΠ»Π΅ΠΊΡ ΡΠ΅ΡΡΠ΅ΠΆΠ΅ΠΉ ΠΈ ΡΡ
Π΅ΠΌ.
Π ΡΠΎΡΡΠ°Π² ΡΠ°Π±ΠΎΡΠΈΡ ΡΠ΅ΡΡΠ΅ΠΆΠ΅ΠΉ Π΄ΠΎΠ»ΠΆΠ½ΠΎ Π²Ρ ΠΎΠ΄ΠΈΡΡ:
— ΠΎΠ±ΠΌΠ΅ΡΠ½ΡΠΉ ΠΏΠ»Π°Π½ ΠΏΠΎΠΌΠ΅ΡΠ΅Π½ΠΈΡ
— ΠΏΠ»Π°Π½ Π΄Π΅ΠΌΠΎΠ½ΡΠ°ΠΆΠ°
— ΠΏΠ»Π°Π½ ΠΌΠΎΠ½ΡΠ°ΠΆΠ° ΠΏΠ΅ΡΠ΅Π³ΠΎΡΠΎΠ΄ΠΎΠΊ
— ΠΏΠ»Π°Π½ ΡΠ°ΡΡΡΠ°Π½ΠΎΠ²ΠΊΠΈ ΠΌΠ΅Π±Π΅Π»ΠΈ ΠΈ ΠΎΠ±ΠΎΡΡΠ΄ΠΎΠ²Π°Π½ΠΈΡ
— ΠΏΠ»Π°Π½ ΠΎΡΡΡΠΊΠ°ΡΡΡΠΈΠ²Π°Π½ΠΈΡ
— ΠΏΠ»Π°Π½ Π½Π°ΠΏΠΎΠ»ΡΠ½ΡΡ ΠΏΠΎΠΊΡΡΡΠΈΠΉ
— ΠΏΠ»Π°Π½ ΡΠ΅ΠΏΠ»ΡΡ ΠΏΠΎΠ»ΠΎΠ²
— ΠΏΠ»Π°Π½ ΡΠ»Π΅ΠΊΡΡΠΎΠ²ΡΠ²ΠΎΠ΄ΠΎΠ²
— ΠΏΠ»Π°Π½ ΡΠ°ΡΠΏΠΎΠ»ΠΎΠΆΠ΅Π½ΠΈΡ ΠΎΡΠ²Π΅ΡΠΈΡΠ΅Π»ΡΠ½ΠΎΠ³ΠΎ ΠΎΠ±ΠΎΡΡΠ΄ΠΎΠ²Π°Π½ΠΈΡ
— Π»ΠΎΠ³ΠΈΡΠ΅ΡΠΊΠ°Ρ ΡΡ Π΅ΠΌΠ° Π²ΡΠΊΠ»ΡΡΠ°ΡΠ΅Π»Π΅ΠΉ
— ΠΏΠ»Π°Π½ ΠΏΠΎΡΠΎΠ»ΠΊΠΎΠ²
— ΠΏΠ»Π°Π½ ΡΠ°ΡΠΏΠΎΠ»ΠΎΠΆΠ΅Π½ΠΈΡ ΡΠ°Π½ΡΠ΅Ρ Π½ΠΈΡΠ΅ΡΠΊΠΎΠ³ΠΎ ΠΎΠ±ΠΎΡΡΠ΄ΠΎΠ²Π°Π½ΠΈΡ
— ΡΠ°ΡΠΊΠ»Π°Π΄ΠΊΠ° ΠΏΠ»ΠΈΡΠΊΠΈ
— ΠΏΠΎΠ΄ΡΠΎΠ±Π½ΡΠ΅ ΡΠ°Π·Π²Π΅ΡΡΠΊΠΈ Π²ΡΠ΅Ρ ΡΡΠ΅Π½
— ΡΠΏΠ΅ΡΠΈΡΠΈΠΊΠ°ΡΠΈΠΈ Π²ΡΠ΅Ρ
ΠΎΡΠ΄Π΅Π»ΠΎΡΠ½ΡΡ
ΠΌΠ°ΡΠ΅ΡΠΈΠ°Π»ΠΎΠ², ΠΎΠ±ΠΎΡΡΠ΄ΠΎΠ²Π°Π½ΠΈΡ, ΠΌΠ΅Π±Π΅Π»ΠΈ.
ΠΠ°Π½Π½ΡΠΉ ΠΊΠΎΠΌΠΏΠ»Π΅ΠΊΡ ΠΌΠΎΠΆΠ΅Ρ Π΄ΠΎΠΏΠΎΠ»Π½ΡΡΡΡΡ Π² Π·Π°Π²ΠΈΡΠΈΠΌΠΎΡΡΠΈ ΠΎΡ ΡΠΏΠ΅ΡΠΈΡΠΈΠΊΠΈ ΠΈ ΠΊΠΎΠ½ΠΊΡΠ΅ΡΠ½ΡΡ Π·Π°Π΄Π°Ρ ΠΏΠΎ ΠΊΠ°ΠΆΠ΄ΠΎΠΌΡ ΠΏΠΎΠΌΠ΅ΡΠ΅Π½ΠΈΡ.
5.ΠΠ²ΡΠΎΡΡΠΊΠΈΠΉ Π½Π°Π΄Π·ΠΎΡ — ΡΡΠΎ ΠΊΠΎΠ½ΡΡΠΎΠ»Ρ Π΄ΠΈΠ·Π°ΠΉΠ½Π΅ΡΠ° Π½Π°Π΄ Ρ ΠΎΠ΄ΠΎΠΌ ΡΠ΅Π°Π»ΠΈΠ·Π°ΡΠΈΠΈ Π΄ΠΈΠ·Π°ΠΉΠ½-ΠΏΡΠΎΠ΅ΠΊΡΠ° ΡΡΡΠΎΠΈΡΠ΅Π»ΡΠΌΠΈ Π΄Π»Ρ ΠΎΠ±Π΅ΡΠΏΠ΅ΡΠ΅Π½ΠΈΡ ΡΠΎΠΎΡΠ²Π΅ΡΡΡΠ²ΠΈΡ Π²ΡΠΏΠΎΠ»Π½ΡΠ΅ΠΌΡΡ ΠΈΠΌΠΈ ΡΠ°Π±ΠΎΡ Π·Π°Π»ΠΎΠΆΠ΅Π½Π½ΡΠΌ Π² ΠΏΡΠΎΠ΅ΠΊΡ ΡΠ΅ΡΠ΅Π½ΠΈΡΠΌ.
ΠΠΈΠ·Π°ΠΉΠ½Π΅ΡΡ Π½Π°ΡΠ΅ΠΉ ΡΡΡΠ΄ΠΈΠΈ inHOME Π²ΡΠΏΠΎΠ»Π½ΡΡ Π΄Π»Ρ ΠΠ°Ρ ΠΈΠ½Π΄ΠΈΠ²ΠΈΠ΄ΡΠ°Π»ΡΠ½ΡΠΉ ΠΏΡΠΎΠ΅ΠΊΡ Π΄ΠΈΠ·Π°ΠΉΠ½Π° ΠΈΠ½ΡΠ΅ΡΡΠ΅ΡΠ° Π΄Π»Ρ Π²Π°ΡΠ΅Π³ΠΎ ΠΏΠΎΠΌΠ΅ΡΠ΅Π½ΠΈΡ Ρ ΡΡΠ΅ΡΠΎΠΌ Π²ΡΠ΅Ρ ΠΏΠΎΠΆΠ΅Π»Π°Π½ΠΈΠΉ ΠΈ ΡΡΠ΅Π±ΠΎΠ²Π°Π½ΠΈΠΉ.
ΠΡΡΠ³ΠΈΠ΅ ΡΡΠ°ΡΡΠΈ ΠΏΡΠΎ Π΄ΠΈΠ·Π°ΠΉΠ½ ΠΈΠ½ΡΠ΅ΡΡΠ΅ΡΠ° ΠΈ ΡΠ΅ΠΌΠΎΠ½Ρ
ΠΠΈΠ·Π°ΠΉΠ½-ΠΏΡΠΎΠ΅ΠΊΡ ΠΈΠ½ΡΠ΅ΡΡΠ΅ΡΠ° Π±Π΅ΡΠΏΠ»Π°ΡΠ½ΠΎ: ΠΌΠ°ΡΠΊΠ΅ΡΠΈΠ½Π³ΠΎΠ²ΡΠΉ Ρ ΠΎΠ΄ ΠΈΠ»ΠΈ ΡΠ΅Π°Π»ΡΠ½ΠΎΡΡΡ?
Π§ΡΠΎ ΡΠ°ΠΊΠΎΠ΅ Π΄ΠΈΠ·Π°ΠΉΠ½ ΠΈΠ½ΡΠ΅ΡΡΠ΅ΡΠ°?
Π‘ΡΠΈΠ»ΠΈ Π² Π΄ΠΈΠ·Π°ΠΉΠ½Π΅ ΠΈΠ½ΡΠ΅ΡΡΠ΅ΡΠ°
ΠΠΈΠ·Π°ΠΉΠ½ ΠΈΠ½ΡΠ΅ΡΡΠ΅ΡΠ° Π² ΠΌΠ°Π»Π΅Π½ΡΠΊΠΎΠΉ ΠΊΠ²Π°ΡΡΠΈΡΠ΅
ΠΠ»Ρ Π½Π°Ρ Π½Π΅Ρ ΡΠΈΠΏΠΎΠ²ΡΡ Π·Π°Π΄Π°Ρ, ΠΏΠΎΡΡΠΎΠΌΡ ΠΊΠ°ΠΆΠ΄ΡΠΉ ΠΏΡΠΎΠ΅ΠΊΡ ΠΌΡ ΠΎΡΠ΅Π½ΠΈΠ²Π°Π΅ΠΌ ΠΈΠ½Π΄ΠΈΠ²ΠΈΠ΄ΡΠ°Π»ΡΠ½ΠΎ. ΠΡΡΠ°Π²ΡΡΠ΅ Π·Π°ΡΠ²ΠΊΡ Π½ΠΈΠΆΠ΅ Π½Π° ΡΠ°ΠΉΡΠ΅, ΡΡΠΎΠ±Ρ ΠΏΠΎΡΡΠΈΡΠ°ΡΡ ΡΡΠΎΠΈΠΌΠΎΡΡΡ ΠΏΡΠΎΠ΅ΠΊΡΠ° Π²Π°ΡΠ΅Π³ΠΎ ΠΈΠ½ΡΠ΅ΡΡΠ΅ΡΠ° ΠΈΠ»ΠΈ ΠΏΠΎΠ·Π²ΠΎΠ½ΠΈΡΠ΅ Π½Π°ΠΌ ΠΏΠΎ ΡΠ΅Π»Π΅ΡΠΎΠ½Ρ 8 (863) 256-83-33.
Π ΠΠ‘Π‘Π§ΠΠ’ΠΠ’Π¬ Π‘Π’ΠΠΠΠΠ‘Π’Π¬ ΠΠ ΠΠΠΠ’Π
Π‘ΠΎΡΡΠ°Π² Π΄ΠΈΠ·Π°ΠΉΠ½-ΠΏΡΠΎΠ΅ΠΊΡ ΠΈΠ½ΡΠ΅ΡΡΠ΅ΡΠ°
Π Π°Π±ΠΎΡΠ° ΠΏΠΎ ΠΏΠ΅ΡΠ΅ΠΏΠ»Π°Π½ΠΈΡΠΎΠ²ΠΊΠ΅ ΠΈΠ»ΠΈ ΠΊΠ°ΠΏΠΈΡΠ°Π»ΡΠ½ΠΎΠΌΡ ΡΠ΅ΠΌΠΎΠ½ΡΡ ΠΏΠΎΠΌΠ΅ΡΠ΅Π½ΠΈΡ Π½Π°ΡΠΈΠ½Π°Π΅ΡΡΡ Ρ ΡΠΎΡΡΠ°Π²Π»Π΅Π½ΠΈΡ Π΄ΠΈΠ·Π°ΠΉΠ½-ΠΏΡΠΎΠ΅ΠΊΡΠ°.
ΠΡΠΎ ΠΏΠ°ΠΊΠ΅Ρ Π΄ΠΎΠΊΡΠΌΠ΅Π½ΡΠΎΠ², ΡΠΎΠ΄Π΅ΡΠΆΠ°ΡΠΈΡ
Π²ΡΡ ΠΈΠ½ΡΠΎΡΠΌΠ°ΡΠΈΡ ΠΎ Π±ΡΠ΄ΡΡΠ΅ΠΌ ΡΠ΅ΠΌΠΎΠ½ΡΠ΅ β ΠΎΡ ΠΎΠ±ΠΌΠ΅ΡΠ½ΠΎΠ³ΠΎ ΠΏΠ»Π°Π½Π° Π΄ΠΎ ΡΠΏΠ΅ΡΠΈΡΠΈΠΊΠ°ΡΠΈΠΉ ΠΎΡΠ΄Π΅Π»ΠΎΡΠ½ΡΡ
ΠΌΠ°ΡΠ΅ΡΠΈΠ°Π»ΠΎΠ². Π Π΄ΠΈΠ·Π°ΠΉΠ½-ΠΏΡΠΎΠ΅ΠΊΡ Π²Ρ
ΠΎΠ΄ΠΈΡ Π²ΡΡ ΠΈΠ½ΡΠΎΡΠΌΠ°ΡΠΈΡ, ΡΠ²ΡΠ·Π°Π½Π½Π°Ρ Ρ Π±ΡΠ΄ΡΡΠΈΠΌ ΡΠ΅ΠΌΠΎΠ½ΡΠΎΠΌ, ΠΈ ΡΡΠΎ Π³Π»Π°Π²Π½ΡΠΉ Π΄ΠΎΠΊΡΠΌΠ΅Π½Ρ Π΄ΠΈΠ·Π°ΠΉΠ½Π΅ΡΠ° ΠΈ ΡΡΡΠΎΠΈΡΠ΅Π»Π΅ΠΉ, ΠΏΠΎΠ·Π²ΠΎΠ»ΡΡΡΠΈΠΉ Π·Π°ΠΊΠ°Π·ΡΠΈΠΊΠ°ΠΌ Π·Π½Π°ΡΠΈΡΠ΅Π»ΡΠ½ΠΎ ΡΡΠΊΠΎΠ½ΠΎΠΌΠΈΡΡ Π²ΡΠ΅ΠΌΡ, ΡΠΈΠ»Ρ ΠΈ ΡΠΈΠ½Π°Π½ΡΡ.
ΠΠ»Π°Π²Π½ΠΎΠ΅ ΠΏΡΠ΅Π΄Π½Π°Π·Π½Π°ΡΠ΅Π½ΠΈΠ΅ Π΄ΠΎΠΊΡΠΌΠ΅Π½ΡΠ° β Π½Π΅ Π΄ΠΎΠΏΡΡΡΠΈΡΡ ΠΎΡΠΈΠ±ΠΎΠΊ ΠΌΠ°ΡΡΠ΅ΡΠΎΠ² Π²ΠΎ Π²ΡΠ΅ΠΌΡ ΡΠ΅ΠΌΠΎΠ½ΡΠ°, Π²ΡΠΏΠΎΠ»Π½ΠΈΡΡ Π΅Π³ΠΎ ΡΠ°ΠΊ, ΠΊΠ°ΠΊ Π±ΡΠ»ΠΎ Π·Π°Π΄ΡΠΌΠ°Π½ΠΎ Π΄ΠΈΠ·Π°ΠΉΠ½Π΅ΡΠΎΠΌ ΡΠΎΠ²ΠΌΠ΅ΡΡΠ½ΠΎ Ρ Π·Π°ΠΊΠ°Π·ΡΠΈΠΊΠΎΠΌ. Π‘Π°ΠΌΠΎΡΡΠΎΡΡΠ΅Π»ΡΠ½ΠΎ ΡΠΎΡΡΠ°Π²ΠΈΡΡ Π΄ΠΎΠΊΡΠΌΠ΅Π½Ρ, ΠΊΠΎΡΠΎΡΡΠΉ ΡΡΠ°Π½Π΅Ρ Π½Π΅ ΠΏΡΠΎΡΡΠΎ ΡΠΏΠΈΡΠΊΠΎΠΌ ΠΏΠΎΠΆΠ΅Π»Π°Π½ΠΈΠΉ, Π° Π½Π°ΡΡΠΎΡΡΠΈΠΌ ΡΡΠΊΠΎΠ²ΠΎΠ΄ΡΡΠ²ΠΎΠΌ ΠΊ Π΄Π΅ΠΉΡΡΠ²ΠΈΡ, Π½Π΅Π²ΠΎΠ·ΠΌΠΎΠΆΠ½ΠΎ, ΠΏΠΎΡΡΠΎΠΌΡ Π΄ΠΎΠ²Π΅ΡΡΡΡ ΡΡΡ ΠΌΠΈΡΡΠΈΡ Π½ΡΠΆΠ½ΠΎ ΡΠΏΠ΅ΡΠΈΠ°Π»ΠΈΡΡΠ°ΠΌ.
Π’ΠΈΠΏΡ Π΄ΠΈΠ·Π°ΠΉΠ½-ΠΏΡΠΎΠ΅ΠΊΡΠ°
Π‘ΡΡΠ΅ΡΡΠ²ΡΠ΅Ρ Π΄Π²Π° Π²ΠΈΠ΄Π° Π΄ΠΈΠ·Π°ΠΉΠ½-ΠΏΡΠΎΠ΅ΠΊΡΠΎΠ², Ρ ΡΠ°Π·Π½ΠΎΠΉ ΡΡΠ΅ΠΏΠ΅Π½ΡΡ Π΄Π΅ΡΠ°Π»ΡΠ½ΠΎΡΡΠΈ ΠΈ Π³Π»ΡΠ±ΠΈΠ½Ρ, ΠΎΠΏΠΈΡΡΠ²Π°ΡΡΠΈΡ
, ΠΊΠ°ΠΊΠΈΠΌ Π±ΡΠ΄Π΅Ρ Π±ΡΠ΄ΡΡΠ΅Π΅ ΠΏΠΎΠΌΠ΅ΡΠ΅Π½ΠΈΠ΅ ΠΈ ΡΠ΅ΠΌΠΎΠ½Ρ Π² Π½Π΅ΠΌ.
Π‘ΡΠ°Π½Π΄Π°ΡΡΠ½ΡΠΉ ΡΠΈΠΏ
Π‘ΡΠ°Π½Π΄Π°ΡΡΠ½ΡΠΉ — ΡΠΎΠ΄Π΅ΡΠΆΠΈΡ ΡΠΎΠ»ΡΠΊΠΎ ΡΠ°ΠΌΡΠ΅ Π½Π΅ΠΎΠ±Ρ ΠΎΠ΄ΠΈΠΌΡΠ΅ ΡΠ²Π΅Π΄Π΅Π½ΠΈΡ, Π½ΠΎ ΠΏΡΠΈ ΡΡΠΎΠΌ ΠΏΠΎΠΌΠΎΠ³Π°Π΅Ρ ΠΏΡΠΈΠ΄Π°ΡΡ ΡΠ΅ΠΌΠΎΠ½ΡΡ Π²ΠΈΠ΄ ΡΠΈΡΡΠ΅ΠΌΡ ΠΈ ΡΠΎΠ΄Π΅ΡΠΆΠΈΡ Π³Π»Π°Π²Π½ΡΡ ΠΈΠ½ΡΠΎΡΠΌΠ°ΡΠΈΡ. ΠΡΠΈ ΡΡΠΎΠΌ Π² Π½Π΅ΠΌ ΠΎΡΡΡΡΡΡΠ²ΡΠ΅Ρ ΠΊΠΎΠ½ΠΊΡΠ΅ΡΠΈΠΊΠ° β Π½Π°ΠΏΡΠΈΠΌΠ΅Ρ, Π½Π΅ ΠΎΠΏΡΠ΅Π΄Π΅Π»Π΅Π½Ρ ΡΠ΅ΡΠΊΠΎ ΠΎΡΡΠ΅Π½ΠΊΠΈ, Π° ΡΠ°ΡΡΡΠ°Π½ΠΎΠ²ΠΊΠ° ΠΌΠ΅Π±Π΅Π»ΠΈ Π½Π° ΡΡΠΊΠΈΠ·Π΅ Π»ΠΈΡΡ ΠΏΡΠΈΠΌΠ΅ΡΠ½ΠΎ ΠΎΡΠΎΠ±ΡΠ°ΠΆΠ°Π΅Ρ ΠΊΠ°ΡΡΠΈΠ½Ρ, ΠΊΠΎΡΠΎΡΠ°Ρ ΡΠ»ΠΎΠΆΠΈΡΡΡ ΠΏΠΎΡΠ»Π΅ ΡΠ΅ΠΌΠΎΠ½ΡΠ°. ΠΠ²Π° ΠΎΠ±ΡΠ·Π°ΡΠ΅Π»ΡΠ½ΡΡ Π΄ΠΎΠΊΡΠΌΠ΅Π½ΡΠ°, Π²Ρ ΠΎΠ΄ΡΡΠΈΡ Π² ΡΡΠ°Π½Π΄Π°ΡΡΠ½ΡΠΉ Π΄ΠΈΠ·Π°ΠΉΠ½-ΠΏΡΠΎΠ΅ΠΊΡ:
- ΠΡΠΊΠΈΠ·, ΠΊΠΎΡΠΎΡΡΠΉ ΡΠΎΡΡΠ°Π²Π»ΡΠ΅ΡΡΡ Ρ ΡΡΠ΅ΡΠΎΠΌ Π³Π΅ΠΎΠΌΠ΅ΡΡΠΈΠΈ ΠΈ ΠΎΡΠΎΠ±Π΅Π½Π½ΠΎΡΡΠ΅ΠΉ ΠΏΠ»Π°Π½ΠΈΡΠΎΠ²ΠΊΠΈ ΠΏΠΎΠΌΠ΅ΡΠ΅Π½ΠΈΡ. ΠΡΠΊΠΈΠ· β ΡΡΠΎ ΠΏΡΠ΅Π΄ΡΡΠ°Π²Π»Π΅Π½ΠΈΡ Π΄ΠΈΠ·Π°ΠΉΠ½Π΅ΡΠ° ΠΎ ΡΠ²Π΅ΡΠΎΠ²ΠΎΠΉ Π³Π°ΠΌΠΌΠ΅, ΠΌΠ°ΡΠ΅ΡΠΈΠ°Π»Π°Ρ , ΠΈΠ½ΡΠ΅ΡΡΠ΅ΡΠ΅ ΠΈ ΠΌΠ΅Π±Π΅Π»ΠΈ.
- ΠΡΠΎΠ΅ΠΊΡ β ΡΠ΅ΡΡΠ΅ΠΆΠΈ ΠΈ ΡΠ°ΡΡΠ΅ΡΡ Ρ ΡΡΠ΅ΡΠΎΠΌ Π²ΠΎΠ·ΠΌΠΎΠΆΠ½ΠΎΠΉ ΠΏΠ΅ΡΠ΅ΠΏΠ»Π°Π½ΠΈΡΠΎΠ²ΠΊΠΈ, Π΄Π²Π΅ΡΠ΅ΠΉ, ΠΎΠΊΠΎΠ½ ΠΈ Π΄ΡΡΠ³ΠΈΡ ΡΠ»Π΅ΠΌΠ΅Π½ΡΠΎΠ², ΠΊΠΎΡΠΎΡΡΠ΅ ΡΡΡΠΎΠΈΡΠ΅Π»ΠΈ Π΄ΠΎΠ»ΠΆΠ½Ρ ΡΡΠ΅ΡΡΡ ΠΏΡΠΈ ΡΠ΅ΠΌΠΎΠ½ΡΠ΅.
Π‘ΡΠ°Π½Π΄Π°ΡΡΠ½ΡΠΉ Π΄ΠΈΠ·Π°ΠΉΠ½-ΠΏΡΠΎΠ΅ΠΊΡ ΡΠ²Π»ΡΠ΅ΡΡΡ Π±Π°Π·ΠΎΠ²ΡΠΌ. ΠΠ½ Π±Π΅Π· ΠΎΠΏΠΈΡΡΠ²Π°Π½ΠΈΡ Π»ΠΈΡΠ½ΠΈΡ Π΄Π΅ΡΠ°Π»Π΅ΠΉ ΠΏΠΎΠ·Π²ΠΎΠ»ΡΠ΅Ρ ΡΠΎΡΡΠ°Π²ΠΈΡΡ Π³ΡΠ°ΠΌΠΎΡΠ½ΡΡ ΡΠΌΠ΅ΡΡ ΠΈ ΡΠ»ΠΎΠΆΠΈΡΡΡΡ Π² Π½Π΅Π΅ Π²ΠΎ Π²ΡΠ΅ΠΌΡ ΠΏΡΠΎΠ²Π΅Π΄Π΅Π½ΠΈΡ ΡΠ΅ΠΌΠΎΠ½ΡΠ°.
ΠΠΎΠ»Π½ΡΠΉ ΡΠΈΠΏ Π΄ΠΈΠ·Π°ΠΉΠ½-ΠΏΡΠΎΠ΅ΠΊΡΠ°
Π ΡΠ΅Π·ΡΠ»ΡΡΠ°ΡΠ΅ ΠΏΠΎΠ»Π½ΠΎΠ³ΠΎ Π΄ΠΈΠ·Π°ΠΉΠ½-ΠΏΡΠΎΠ΅ΠΊΡΠ° Π·Π°ΠΊΠ°Π·ΡΠΈΠΊ ΠΈ ΡΡΡΠΎΠΈΡΠ΅Π»ΠΈ ΠΏΠΎΠ»ΡΡΠ°ΡΡ Π²ΠΈΠ΄Π΅Π½ΠΈΠ΅ ΡΠΎΠ³ΠΎ, ΠΊΠ°ΠΊ Π±ΡΠ΄Π΅Ρ Π²ΡΠ³Π»ΡΠ΄Π΅ΡΡ ΠΊΠ²Π°ΡΡΠΈΡΠ° ΠΏΠΎΡΠ»Π΅ ΡΠ΅ΠΌΠΎΠ½ΡΠ° Π² ΠΌΠ°ΠΊΡΠΈΠΌΠ°Π»ΡΠ½ΠΎ ΠΏΡΠΈΠ±Π»ΠΈΠΆΠ΅Π½Π½ΠΎΠΌ ΠΊ ΡΠ΅Π°Π»ΡΠ½ΠΎΡΡΠΈ Π²ΠΈΠ΄Π΅.
Π‘ΠΎΡΡΠ°Π² ΠΏΠΎΠ»Π½ΠΎΠ³ΠΎ Π΄ΠΈΠ·Π°ΠΉΠ½-ΠΏΡΠΎΠ΅ΠΊΡΠ° ΠΊΠ²Π°ΡΡΠΈΡΡ, Π΄ΠΎΠΌΠ° Π²ΠΊΠ»ΡΡΠ°Π΅Ρ, Π² ΡΠΎΠΌ ΡΠΈΡΠ»Π΅:
- Π½Π΅ΡΠΊΠΎΠ»ΡΠΊΠΎ Π²Π°ΡΠΈΠ°Π½ΡΠΎΠ² ΠΏΠ»Π°Π½ΠΈΡΠΎΠ²ΠΊΠΈ;
- ΠΏΠ»Π°Π½ Π²ΡΠ΅Ρ ΠΏΠΎΠ²Π΅ΡΡ Π½ΠΎΡΡΠ΅ΠΉ Π² Π΄ΠΎΠΌΠ΅ ΠΈΠ»ΠΈ ΠΊΠ²Π°ΡΡΠΈΡΠ΅;
- ΡΠΎΡΠ΅ΡΠ°Π½ΠΈΡ ΠΎΡΡΠ΅Π½ΠΊΠΎΠ² ΠΈ ΡΠ²Π΅ΡΠΎΠ²;
- ΡΠ²Π΅ΡΠΎΠ²ΡΠ΅ ΡΠ΅ΡΠ΅Π½ΠΈΡ Ρ ΠΏΠ»Π°Π½ΠΎΠΌ ΡΠ°Π·ΠΌΠ΅ΡΠ΅Π½ΠΈΡ ΠΎΡΠ²Π΅ΡΠΈΡΠ΅Π»ΡΠ½ΡΡ ΠΏΡΠΈΠ±ΠΎΡΠΎΠ²;
- Π·ΠΎΠ½ΠΈΡΠΎΠ²Π°Π½ΠΈΠ΅ ΠΏΡΠΎΡΡΡΠ°Π½ΡΡΠ²Π°;
- ΡΠ°ΡΡΡΠ°Π½ΠΎΠ²ΠΊΠ° ΠΌΠ΅Π±Π΅Π»ΠΈ ΠΈ Π²ΡΠ΅Ρ ΡΠΈΠΏΠΎΠ² ΠΎΠ±ΠΎΡΡΠ΄ΠΎΠ²Π°Π½ΠΈΡ;
- Π½Π°ΠΈΠΌΠ΅Π½ΠΎΠ²Π°Π½ΠΈΠ΅ ΠΎΡΠ΄Π΅Π»ΠΎΡΠ½ΡΡ ΠΌΠ°ΡΠ΅ΡΠΈΠ°Π»ΠΎΠ² Ρ ΡΠΊΠ°Π·Π°Π½ΠΈΠ΅ΠΌ ΠΏΡΠΎΠΈΠ·Π²ΠΎΠ΄ΠΈΡΠ΅Π»Π΅ΠΉ ΠΈ Π±ΡΠ΅Π½Π΄ΠΎΠ².
Π ΡΠΎΡΡΠ°Π² Π΄ΠΈΠ·Π°ΠΉΠ½-ΠΏΡΠΎΠ΅ΠΊΡΠ° ΠΈΠ½ΡΠ΅ΡΡΠ΅ΡΠ° Π² ΡΡΠΎΠΌ ΡΠ»ΡΡΠ°Π΅ ΠΎΠ±ΡΠ·Π°ΡΠ΅Π»ΡΠ½ΠΎ Π²Ρ ΠΎΠ΄ΠΈΡ ΡΡΠ΅Ρ ΠΌΠ΅ΡΠ½Π°Ρ Π²ΠΈΠ·ΡΠ°Π»ΠΈΠ·Π°ΡΠΈΡ, ΠΊΠΎΡΠΎΡΠ°Ρ ΠΎΠ±Π΅ΡΠΏΠ΅ΡΠΈΠ²Π°Π΅Ρ Π½Π°Π³Π»ΡΠ΄Π½ΠΎΡΡΡ ΠΈ Π΄Π΅ΠΌΠΎΠ½ΡΡΡΠΈΡΡΠ΅Ρ ΠΎΠ±ΠΎΡΠ½ΠΎΠ²Π°Π½Π½ΠΎΡΡΡ ΠΈ ΡΠ΅Π»Π΅ΡΠΎΠΎΠ±ΡΠ°Π·Π½ΠΎΡΡΡ Π²ΡΠ΅Ρ ΡΠ΅ΡΠ΅Π½ΠΈΠΉ Π΄ΠΈΠ·Π°ΠΉΠ½Π΅ΡΠ°.
ΠΡΠ»ΠΈ Π΅ΡΡΡ Π±ΠΎΠ»ΡΡΠΎΠ΅ ΠΆΠ΅Π»Π°Π½ΠΈΠ΅ ΡΡΠ°ΡΡ Π΄ΠΈΠ·Π°ΠΉΠ½Π΅ΡΠΎΠΌ, Ρ ΡΠ΅Π³ΠΎ Π½Π°ΡΠ°ΡΡ?
ΠΠ»Ρ Π½Π°ΡΠ°Π»Π°, ΠΌΡ ΡΠΎΠ²Π΅ΡΡΠ΅ΠΌ Π²Π°ΠΌ ΠΏΠΎΠ·Π½Π°ΠΊΠΎΠΌΠΈΡΡΡΡ Ρ ΠΏΡΠΎΡΠ΅ΡΡΠΈΠ΅ΠΉ Π΄ΠΈΠ·Π°ΠΉΠ½Π΅ΡΠ° ΠΈΠ½ΡΠ΅ΡΡΠ΅ΡΠ° Π±Π»ΠΈΠΆΠ΅ Ρ ΠΏΠΎΠΌΠΎΡΡΡ Π±Π΅ΡΠΏΠ»Π°ΡΠ½ΠΎΠ³ΠΎ ΠΎΠ½Π»Π°ΠΉΠ½-ΠΏΡΠ°ΠΊΡΠΈΠΊΡΠΌΠ° ΠΎΡ Art and Shock School.
ΠΠ°Ρ ΠΎΠ½Π»Π°ΠΉΠ½-ΠΏΡΠ°ΠΊΡΠΈΠΊΡΠΌ Π΄Π»ΠΈΡΡΡ 3 Π΄Π½Ρ, Π·Π° ΠΊΠΎΡΠΎΡΡΠ΅ Π²Ρ ΡΠΌΠΎΠΆΠ΅ΡΠ΅:
- ΠΏΠΎΠ³ΡΡΠ·ΠΈΡΡΡΡ Π² ΠΏΡΠΎΡΠ΅ΡΡΠΈΡ;
- ΠΏΠΎΡΠ΅ΡΠΈΡΡ ΠΎΠ½Π»Π°ΠΉΠ½ ΠΌΠ°ΡΡΠ΅Ρ-ΠΊΠ»Π°ΡΡΡ Π½Π° ΡΠ°ΠΊΠΈΠ΅ ΡΠ΅ΠΌΡ ΠΊΠ°ΠΊ ΠΊΠΎΠ»ΠΎΡΠΈΡΡΠΈΠΊΠ°, ΡΡΠΈΠ»ΠΈΡΡΠΈΠΊΠ°, ΡΡΠ³ΠΎΠ½ΠΎΠΌΠΈΠΊΠ°;
- ΡΠ·Π½Π°ΡΡ ΠΏΠ΅ΡΡΠΏΠ΅ΠΊΡΠΈΠ²Ρ ΠΏΡΠΎΡΠ΅ΡΡΠΈΠΈ Π΄ΠΈΠ·Π°ΠΉΠ½Π΅ΡΠ° ΠΈΠ½ΡΠ΅ΡΡΠ΅ΡΠ°;
- ΠΏΠΎΠ½ΡΡΡ ΡΡΠΎ Π½ΡΠΆΠ½ΠΎ Π΄Π»Ρ ΡΡΠ°ΡΡΠ° ΠΈ Π³Π΄Π΅ ΠΈΡΠΊΠ°ΡΡ Π·Π°ΠΊΠ°Π·ΡΠΈΠΊΠΎΠ²;
Π ΡΠ΅Π·ΡΠ»ΡΡΠ°ΡΠ΅, Π²Ρ Π²ΡΠΏΠΎΠ»Π½ΠΈΡΠ΅ ΡΠ²ΠΎΠΉ ΠΏΠ΅ΡΠ²ΡΠΉ ΠΏΡΠΎΠ±Π½ΡΠΉ Π΄ΠΈΠ·Π°ΠΉΠ½-ΠΏΡΠΎΠ΅ΠΊΡ ΠΏΡΠΈ ΠΏΠΎΠ΄Π΄Π΅ΡΠΆΠΊΠ΅ ΠΊΡΡΠ°ΡΠΎΡΠΎΠ² ΠΎΠ½Π»Π°ΠΉΠ½-ΠΏΡΠ°ΠΊΡΠΈΠΊΡΠΌΠ°.
ΠΠ°ΡΠ΅Π³ΠΈΡΡΡΠΈΡΠΎΠ²Π°ΡΡΡΡ ΠΌΠΎΠΆΠ½ΠΎ ΠΏΠΎ ΡΡΡΠ»ΠΊΠ΅ ΠΏΡΡΠΌΠΎ ΡΠ΅ΠΉΡΠ°Ρ
Π‘ΠΎΡΡΠ°Π²Π»ΡΡΡΠΈΠ΅ Π΄ΠΈΠ·Π°ΠΉΠ½-ΠΏΡΠΎΠ΅ΠΊΡΠ°
ΠΠΈΠ·Π°ΠΉΠ½-ΠΏΡΠΎΠ΅ΠΊΡ ΠΎΠ±ΡΠ΅Π΄ΠΈΠ½ΡΠ΅Ρ Π½Π΅ΡΠΊΠΎΠ»ΡΠΊΠΎ Π΄ΠΎΠΊΡΠΌΠ΅Π½ΡΠΎΠ², Π²ΡΠ΅ ΠΎΠ½ΠΈ ΠΎΡΠΎΡΠΌΠ»ΡΡΡΡΡ ΠΏΠΎΡΡΠ°ΠΏΠ½ΠΎ, ΠΏΠΎ ΠΌΠ΅ΡΠ΅ ΡΠ°Π±ΠΎΡΡ, ΠΈ Π΄ΠΎΠΏΠΎΠ»Π½ΡΡΡ Π΄ΡΡΠ³ Π΄ΡΡΠ³Π°. ΠΠ° ΠΊΠ°ΠΆΠ΄ΠΎΠΌ ΡΡΠ°ΠΏΠ΅ ΡΠ°Π±ΠΎΡΡ ΠΎΡΠΎΡΠΌΠ»ΡΠ΅ΡΡΡ ΠΎΠΏΡΠ΅Π΄Π΅Π»Π΅Π½Π½ΡΠΉ Π΄ΠΎΠΊΡΠΌΠ΅Π½Ρ, Π²ΡΠ΅ ΠΎΠ½ΠΈ Π² ΡΠΎΠ²ΠΎΠΊΡΠΏΠ½ΠΎΡΡΠΈ ΠΏΡΠ΅Π΄ΡΡΠ°Π²Π»ΡΡΡ ΡΠΎΠ±ΠΎΠΉ Π³ΠΎΡΠΎΠ²ΡΠΉ ΠΊ ΡΠ°Π±ΠΎΡΠ΅ Π΄ΠΈΠ·Π°ΠΉΠ½-ΠΏΡΠΎΠ΅ΠΊΡ.
Π’Π΅Ρ Π½ΠΈΡΠ΅ΡΠΊΠΎΠ΅ Π·Π°Π΄Π°Π½ΠΈΠ΅
ΠΡΠΎ Π΄ΠΎΠΊΡΠΌΠ΅Π½Ρ, Π² ΡΠΎΡΡΠ°Π²Π»Π΅Π½ΠΈΠΈ ΠΊΠΎΡΠΎΡΠΎΠ³ΠΎ Π½Π΅ΠΏΠΎΡΡΠ΅Π΄ΡΡΠ²Π΅Π½Π½ΠΎΠ΅ ΡΡΠ°ΡΡΠΈΠ΅ ΠΏΡΠΈΠ½ΠΈΠΌΠ°Π΅Ρ Π·Π°ΠΊΠ°Π·ΡΠΈΠΊ. Π§Π΅ΠΌ ΠΏΠΎΠ΄ΡΠΎΠ±Π½Π΅Π΅ ΠΎΠ½ ΠΎΠΏΠΈΡΠ΅Ρ ΡΠ²ΠΎΠΈ ΠΏΠΎΠΆΠ΅Π»Π°Π½ΠΈΡ Π² ΡΠ΅Ρ Π½ΠΈΡΠ΅ΡΠΊΠΎΠΌ Π·Π°Π΄Π°Π½ΠΈΠΈ β ΡΠ΅ΠΌ ΡΠΎΡΠ½Π΅Π΅ Π΄ΠΈΠ·Π°ΠΉΠ½Π΅Ρ ΠΈΠ½ΡΠ΅ΡΡΠ΅ΡΠ° Π²ΠΎΠΏΠ»ΠΎΡΠΈΡ ΠΈΡ Π² ΡΠ΅Π°Π»ΡΠ½ΠΎΡΡΡ. ΠΠ°ΠΊΠ°Π·ΡΠΈΠΊΡ ΠΏΡΠ΅Π΄Π»Π°Π³Π°ΡΡΡΡ Π²ΠΎΠΏΡΠΎΡΡ, Π½Π° ΠΊΠΎΡΠΎΡΡΠ΅ ΠΎΠ½ Π΄Π°Π΅Ρ ΠΌΠ°ΠΊΡΠΈΠΌΠ°Π»ΡΠ½ΠΎ ΠΏΠΎΠ΄ΡΠΎΠ±Π½ΡΠ΅ ΠΎΡΠ²Π΅ΡΡ, Π² ΡΠΎΠΌ ΡΠΈΡΠ»Π΅:
- ΠΏΠ΅ΡΠ΅ΠΏΠ»Π°Π½ΠΈΡΠΎΠ²ΠΊΠ° ΠΈ Π΅Π΅ ΠΎΡΠΎΠ±Π΅Π½Π½ΠΎΡΡΠΈ, Π΅ΡΠ»ΠΈ ΠΎΠ½Π° Π½Π΅ΠΎΠ±Ρ ΠΎΠ΄ΠΈΠΌΠ°;
- ΠΏΠ΅ΡΠ΅ΡΠ΅Π½Ρ ΠΌΠ°ΡΠ΅ΡΠΈΠ°Π»ΠΎΠ², ΠΊΠΎΡΠΎΡΡΠ΅ Π΄ΠΎΠ»ΠΆΠ½Ρ Π±ΡΡΡ ΠΈΡΠΏΠΎΠ»ΡΠ·ΠΎΠ²Π°Π½Ρ Π² ΠΎΡΠ΄Π΅Π»ΠΊΠ΅;
- ΡΠ°ΠΊΡΡΡΡ ΠΈ ΠΎΡΡΠ΅Π½ΠΊΠΈ;
- ΡΠ΅ΠΊΡΡΠΈΠ»Ρ ΠΈ ΠΏΡΠ΅Π΄ΠΌΠ΅ΡΡ ΠΌΠ΅Π±Π΅Π»ΠΈ;
- ΡΠΎΡΠ³ΠΎΠ²ΡΠ΅ ΠΌΠ°ΡΠΊΠΈ β Π΅ΡΠ»ΠΈ Ρ Π·Π°ΠΊΠ°Π·ΡΠΈΠΊΠ° Π΅ΡΡΡ ΠΎΠΏΡΠ΅Π΄Π΅Π»Π΅Π½Π½ΡΠ΅ ΠΏΠΎΠΆΠ΅Π»Π°Π½ΠΈΡ ΠΊ Π½ΠΈΠΌ.

ΠΡΠ΅ ΡΡΠΈ Π²ΠΎΠΏΡΠΎΡΡ ΠΎΠ±ΡΡΠΆΠ΄Π°ΡΡΡΡ ΠΏΡΠΈ Π»ΠΈΡΠ½ΠΎΠΉ Π²ΡΡΡΠ΅ΡΠ΅ Π·Π°ΠΊΠ°Π·ΡΠΈΠΊΠ° Ρ Π΄ΠΈΠ·Π°ΠΉΠ½Π΅ΡΠΎΠΌ ΠΈΠ»ΠΈ ΠΏΠΎ ΡΠ»Π΅ΠΊΡΡΠΎΠ½Π½ΠΎΠΉ ΠΏΠΎΡΡΠ΅ ΠΈ ΡΠ΅Π»Π΅ΡΠΎΠ½Ρ. Π’Π΅Ρ Π½ΠΈΡΠ΅ΡΠΊΠΎΠ΅ Π·Π°Π΄Π°Π½ΠΈΠ΅ ΡΡΠΈΡΠ°Π΅ΡΡΡ ΠΎΡΠΈΡΠΈΠ°Π»ΡΠ½ΡΠΌ Π΄ΠΎΠΊΡΠΌΠ΅Π½ΡΠΎΠΌ, Π½Π° ΠΊΠΎΡΠΎΡΠΎΠΌ ΡΡΠ°Π²ΡΡΡΡ ΠΏΠΎΠ΄ΠΏΠΈΡΠΈ ΠΈ ΠΏΠ΅ΡΠ°ΡΡ ΠΊΠΎΠΌΠΏΠ°Π½ΠΈΠΈ-ΠΏΠΎΠ΄ΡΡΠ΄ΡΠΈΠΊΠ°, ΠΏΠΎΡΠΊΠΎΠ»ΡΠΊΡ ΠΈΠΌΠ΅Π½Π½ΠΎ ΠΈΠΌ Π±ΡΠ΄Π΅Ρ ΡΡΠΊΠΎΠ²ΠΎΠ΄ΡΡΠ²ΠΎΠ²Π°ΡΡΡΡ ΡΠΏΠ΅ΡΠΈΠ°Π»ΠΈΡΡ Π² ΡΠ°Π±ΠΎΡΠ΅ Π½Π°Π΄ Π΄ΠΈΠ·Π°ΠΉΠ½-ΠΏΡΠΎΠ΅ΠΊΡΠΎΠΌ.
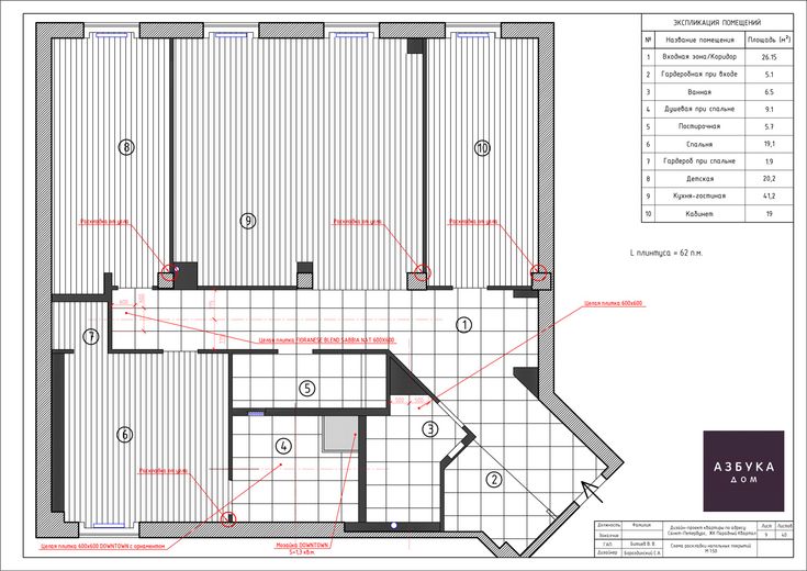
ΠΠ±ΠΌΠ΅ΡΠΎΡΠ½ΡΠΉ ΠΏΠ»Π°Π½
ΠΠ»Π°Π²Π½ΠΎΠ΅ Π½Π°Π·Π½Π°ΡΠ΅Π½ΠΈΠ΅ ΡΡΠΎΠ³ΠΎ Π΄ΠΎΠΊΡΠΌΠ΅Π½ΡΠ° β ΡΡΠΎΡΠ½ΠΈΡΡ ΠΏΠ»ΠΎΡΠ°Π΄Ρ ΠΎΠ±ΡΠ΅ΠΊΡΠ° ΠΈ Π²ΡΠ΅Ρ ΠΏΠΎΠΌΠ΅ΡΠ΅Π½ΠΈΠΉ, ΠΊΠΎΡΠΎΡΡΠ΅ ΠΎΠ½ ΠΎΠ±ΡΠ΅Π΄ΠΈΠ½ΡΠ΅Ρ. ΠΡΠΎ Π½ΡΠΆΠ½ΠΎ Π΄Π»Ρ ΡΠΎΠ³ΠΎ, ΡΡΠΎΠ±Ρ Π² Π΄Π°Π»ΡΠ½Π΅ΠΉΡΠ΅ΠΌ ΠΏΡΠ°Π²ΠΈΠ»ΡΠ½ΠΎ ΡΠ°ΡΡΡΠΈΡΠ°ΡΡ ΠΏΠ΅ΡΠ΅ΠΏΠ»Π°Π½ΠΈΡΠΎΠ²ΠΊΡ, Π΅ΡΠ»ΠΈ ΠΎΠ½Π° Π½Π΅ΠΎΠ±Ρ ΠΎΠ΄ΠΈΠΌΠ°, ΠΈ ΠΌΠ°ΡΠ΅ΡΠΈΠ°Π»Ρ, ΠΊΠΎΡΠΎΡΡΠ΅ ΠΏΠΎΡΡΠ΅Π±ΡΡΡΡΡ Π΄Π»Ρ ΡΠ°Π±ΠΎΡΡ. ΠΠ·ΠΌΠ΅ΡΡΠ΅ΡΡΡ Π½Π΅ΡΠΊΠΎΠ»ΡΠΊΠΎ ΠΏΠΎΠΊΠ°Π·Π°ΡΠ΅Π»Π΅ΠΉ:
- ΡΡΠ΅Π½Ρ;
- Π²ΡΡΠΎΡΠ° ΠΏΠΎΡΠΎΠ»ΠΊΠΎΠ² Π² Π½Π΅ΡΠΊΠΎΠ»ΡΠΊΠΈΡ ΡΠΎΡΠΊΠ°Ρ ;
- ΡΠΊΠ»ΠΎΠ½ ΠΏΠΎΠ»Π°;
- ΠΏΡΠΎΠ΅ΠΌΡ Π΄Π²Π΅ΡΠ΅ΠΉ ΠΈ ΠΎΠΊΠΎΠ½.
ΠΠ΅ΡΠ΅Π΄ΠΊΠΎ ΠΎΠ±Π½Π°ΡΡΠΆΠΈΠ²Π°ΡΡΡΡ ΠΏΠΎΠ³ΡΠ΅ΡΠ½ΠΎΡΡΠΈ, Π΄ΠΎΠΏΡΡΠ΅Π½Π½ΡΠ΅ Π΅ΡΠ΅ ΠΏΡΠΈ ΡΡΡΠΎΠΈΡΠ΅Π»ΡΡΡΠ²Π΅ Π·Π΄Π°Π½ΠΈΡ β Π½Π°ΠΏΡΠΈΠΌΠ΅Ρ, ΡΠ°Π·Π½Π°Ρ Π²ΡΡΠΎΡΠ° ΠΏΠΎΡΠΎΠ»ΠΊΠ° Π² Π½Π΅ΡΠΊΠΎΠ»ΡΠΊΠΈΡ
ΡΠΎΡΠΊΠ°Ρ
ΠΈΠ»ΠΈ Π½Π΅ΡΠΎΠ²Π½ΠΎΡΡΡ ΡΡΠ΅Π½. ΠΡΠ΅ ΡΡΠΈ Π½ΡΠ°Π½ΡΡ Π΄ΠΎΠ»ΠΆΠ½Ρ Π±ΡΡΡ Π·Π°ΡΠΈΠΊΡΠΈΡΠΎΠ²Π°Π½Ρ Π² ΠΎΠ±ΠΌΠ΅ΡΠΎΡΠ½ΠΎΠΌ ΠΏΠ»Π°Π½Π΅, ΡΡΠΎΠ±Ρ ΠΏΠΎΡΠΎΠΌ Π±ΡΠ»Π° Π²ΠΎΠ·ΠΌΠΎΠΆΠ½ΠΎΡΡΡ ΠΈΡ
ΡΠ²ΠΎΠ΅Π²ΡΠ΅ΠΌΠ΅Π½Π½ΠΎ ΡΡΡΡΠ°Π½ΠΈΡΡ.
ΠΠ»Π°Π½ΠΈΡΠΎΠ²ΠΎΡΠ½ΠΎΠ΅ ΡΠ΅ΡΠ΅Π½ΠΈΠ΅
ΠΡΠΎΡ ΡΡΠ°ΠΏ β ΠΎΠ΄ΠΈΠ½ ΠΈΠ· ΡΠ°ΠΌΡΡ ΠΏΡΠΎΠ΄ΠΎΠ»ΠΆΠΈΡΠ΅Π»ΡΠ½ΡΡ ΠΏΠΎ Π²ΡΠ΅ΠΌΠ΅Π½ΠΈ, ΠΏΠΎΡΠΊΠΎΠ»ΡΠΊΡ Π² Π½Π΅Π³ΠΎ Π²ΠΊΠ»ΡΡΠ°ΡΡΡΡ Π²ΡΠ΅ ΠΎΡΠ½ΠΎΠ²Π½ΡΠ΅ ΠΏΠΎΠ΄Π³ΠΎΡΠΎΠ²ΠΈΡΠ΅Π»ΡΠ½ΡΠ΅ ΡΠ°Π±ΠΎΡΡ. ΠΡΠ»ΠΈ ΡΠ΅ΡΡ ΠΈΠ΄Π΅Ρ ΠΎ Π΄ΠΎΠΌΠ΅, ΡΠΎ Π΄ΠΈΠ·Π°ΠΉΠ½Π΅Ρ ΡΠ΅ΡΠ°Π΅Ρ, ΠΊΠ°ΠΊ ΠΎΠ±ΡΡΡΡΠΎΠΈΡΡ ΠΊΠ°ΠΆΠ΄ΡΠΉ Π΅Π³ΠΎ ΡΡΠ°ΠΆ. Π ΡΠΎΡΡΠ°Π² Π΄ΠΎΠΊΡΠΌΠ΅Π½ΡΠ°ΡΠΈΠΈ Π²Ρ ΠΎΠ΄ΠΈΡ ΡΠ°ΠΊΠΆΠ΅ ΠΏΡΠΈΠ±Π»ΠΈΠ·ΠΈΡΠ΅Π»ΡΠ½Π°Ρ ΡΠ°ΡΡΡΠ°Π½ΠΎΠ²ΠΊΠ° ΠΌΠ΅Π±Π΅Π»ΠΈ, ΠΏΠ΅ΡΠ΅ΠΏΠ»Π°Π½ΠΈΡΠΎΠ²ΠΊΠ°. ΠΠ±ΡΡΠ½ΠΎ ΡΠΏΠ΅ΡΠΈΠ°Π»ΠΈΡΡ ΡΠΎΡΡΠ°Π²Π»ΡΠ΅Ρ Π½Π΅ΡΠΊΠΎΠ»ΡΠΊΠΎ ΠΏΠΎΡΡΠ°ΠΆΠ½ΡΡ ΠΏΠ»Π°Π½ΠΎΠ² ΠΈ ΠΏΡΠ΅Π΄Π»Π°Π³Π°Π΅Ρ ΠΈΡ Π·Π°ΠΊΠ°Π·ΡΠΈΠΊΡ, ΡΡΠΎΠ±Ρ ΠΎΠ½ Π²ΡΠ±ΡΠ°Π» ΡΠΎΡ Π΅Π΄ΠΈΠ½ΡΡΠ²Π΅Π½Π½ΡΠΉ, ΠΊΠΎΡΠΎΡΡΠΉ Π±ΡΠ΄Π΅Ρ ΡΠ΅Π°Π»ΠΈΠ·ΠΎΠ²Π°Π½. ΠΠ° ΡΡΠ°ΠΏΠ΅ ΠΎΠ±ΡΡΠΆΠ΄Π΅Π½ΠΈΠΉ ΠΏΠ»Π°Π½ΠΈΡΠΎΠ²ΠΎΡΠ½ΠΎΠ³ΠΎ ΡΠ΅ΡΠ΅Π½ΠΈΡ Ρ Π·Π°ΠΊΠ°Π·ΡΠΈΠΊΠΎΠΌ Π² Π½Π΅Π³ΠΎ ΡΠ°ΠΊΠΆΠ΅ ΠΌΠΎΠ³ΡΡ Π²Π½ΠΎΡΠΈΡΡΡΡ ΠΈΠ·ΠΌΠ΅Π½Π΅Π½ΠΈΡ ΠΈ ΠΊΠΎΡΡΠ΅ΠΊΡΠΈΡΠΎΠ²ΠΊΠΈ.
Π‘ΡΠΈΠ»ΠΈΡΡΠΈΡΠ΅ΡΠΊΠΈΠΉ ΠΊΠΎΠ»Π»Π°ΠΆ
ΠΠΎΠ»Π»Π°ΠΆ ΠΌΠΎΠΆΠ΅Ρ ΡΠΎΠ·Π΄Π°Π²Π°ΡΡΡΡ Π²ΡΡΡΠ½ΡΡ ΠΈΠ»ΠΈ Ρ ΠΈΡΠΏΠΎΠ»ΡΠ·ΠΎΠ²Π°Π½ΠΈΠ΅ΠΌ ΡΠΏΠ΅ΡΠΈΠ°Π»ΡΠ½ΡΡ ΠΏΡΠΎΠ³ΡΠ°ΠΌΠΌ. ΠΠ»Π°Π²Π½ΠΎΠ΅, ΡΡΠΎΠ±Ρ Π² Π½Π΅ΠΌ Π±ΡΠ»ΠΈ ΠΎΡΡΠ°ΠΆΠ΅Π½Π° ΠΎΡΠ½ΠΎΠ²Π½Π°Ρ ΠΈΠ΄Π΅Ρ β ΠΎΠ½ Π΄ΠΎΠ»ΠΆΠ΅Π½ ΡΠΎΡΠΌΠΈΡΠΎΠ²Π°ΡΡ ΠΏΡΠΈΠΌΠ΅ΡΠ½ΠΎΠ΅ ΠΏΡΠ΅Π΄ΡΡΠ°Π²Π»Π΅Π½ΠΈΠ΅, ΠΊΠ°ΠΊ Π±ΡΠ΄Π΅Ρ Π²ΡΠ³Π»ΡΠ΄Π΅ΡΡ ΠΏΠΎΠΌΠ΅ΡΠ΅Π½ΠΈΠ΅ ΠΏΠΎΡΠ»Π΅ ΡΠ΅ΠΌΠΎΠ½ΡΠ°. Π’ΠΎΡΠ½ΠΎΡΡΠΈ Π² Π΄Π΅ΡΠ°Π»ΡΡ Π·Π΄Π΅ΡΡ Π½Π΅ Π½ΡΠΆΠ½ΠΎ, Π³Π»Π°Π²Π½ΠΎΠ΅ β Π²ΠΈΡΡΡΠ°Π»ΡΠ½ΠΎ ΠΏΠΎΠΊΠ°Π·Π°ΡΡ Π±ΡΠ΄ΡΡΡΡ ΠΎΡΠ³Π°Π½ΠΈΠ·Π°ΡΠΈΡ ΠΏΡΠΎΡΡΡΠ°Π½ΡΡΠ²Π°.
ΠΠ»Ρ ΡΡΠΎΠ³ΠΎ ΠΌΠΎΠΆΠ΅Ρ ΠΈΡΠΏΠΎΠ»ΡΠ·ΠΎΠ²Π°ΡΡΡΡ ΠΏΡΠΎΠ³ΡΠ°ΠΌΠΌΠ°, Π³Π΄Π΅ ΡΠΎΠ»Ρ ΠΌΠ΅Π±Π΅Π»ΠΈ Π²ΡΠΏΠΎΠ»Π½ΡΡΡ ΠΈΠΊΠΎΠ½ΠΊΠΈ, ΡΡΡΠ½ΠΎΠ΅ ΡΠΈΡΠΎΠ²Π°Π½ΠΈΠ΅ ΠΈΠ»ΠΈ ΡΠ²ΠΎΡΡΠ΅ΡΡΠ²ΠΎ Π² Π²ΠΈΠ΄Π΅ Π½Π°ΠΊΠ»Π΅ΠΈΠ²Π°Π½ΠΈΡ Π½Π° Π»ΠΈΡΡ Π±ΡΠΌΠ°Π³ΠΈ ΡΠΎΠΎΡΠ²Π΅ΡΡΡΠ²ΡΡΡΠΈΡ
ΠΊΠ°ΡΡΠΈΠ½ΠΎΠΊ Ρ ΠΈΠ·ΠΎΠ±ΡΠ°ΠΆΠ΅Π½ΠΈΠ΅ΠΌ ΠΌΠ΅Π±Π΅Π»ΠΈ.
ΠΠ½ΠΈ ΠΌΠΎΠ³ΡΡ Π½Π΅ ΡΠΎΠΎΡΠ²Π΅ΡΡΡΠ²ΠΎΠ²Π°ΡΡ ΡΠΎΠΉ ΠΌΠ΅Π±Π΅Π»ΠΈ, ΠΊΠΎΡΠΎΡΠ°Ρ Π±ΡΠ΄Π΅Ρ ΠΈΡΠΏΠΎΠ»ΡΠ·ΠΎΠ²Π°ΡΡΡΡ, Π½ΠΎ Π½Π° ΡΡΠΎΠΌ ΡΡΠ°ΠΏΠ΅ ΡΠ°Π±ΠΎΡΡ ΡΠ°ΠΌΠΎΠ΅ Π²Π°ΠΆΠ½ΠΎΠ΅ β ΠΏΡΠΎΠ΄Π΅ΠΌΠΎΠ½ΡΡΡΠΈΡΠΎΠ²Π°ΡΡ Π½Π΅ Π΄Π΅ΡΠ°Π»ΠΈ ΠΎΠ±ΡΡΠ°Π½ΠΎΠ²ΠΊΠΈ, Π° ΠΎΠ±ΡΠΈΠ΅ ΠΏΠ»Π°Π½ΠΈΡΠΎΠ²ΠΎΡΠ½ΡΠ΅ ΡΠ΅ΡΠ΅Π½ΠΈΡ Π΄Π»Ρ ΠΊΠ°ΠΆΠ΄ΠΎΠ³ΠΎ ΠΏΠΎΠΌΠ΅ΡΠ΅Π½ΠΈΡ.
ΠΠ»Π°Π½ ΡΠ°ΡΡΡΠ°Π½ΠΎΠ²ΠΊΠΈ ΠΌΠ΅Π±Π΅Π»ΠΈ ΠΈ ΠΌΠΎΠ½ΡΠ°ΠΆΠ½ΡΠ΅ ΠΏΠ»Π°Π½Ρ
ΠΠ°ΠΊ ΠΏΡΠ°Π²ΠΈΠ»ΠΎ, ΡΠ°ΠΊΠΈΡ ΠΏΠ»Π°Π½ΠΎΠ² ΡΠΎΡΡΠ°Π²Π»ΡΠ΅ΡΡΡ Π½Π΅ΡΠΊΠΎΠ»ΡΠΊΠΎ, ΡΡΠΎΠ±Ρ Π·Π°ΠΊΠ°Π·ΡΠΈΠΊ ΠΌΠΎΠ³ ΡΠ΄Π΅Π»Π°ΡΡ Π²ΡΠ±ΠΎΡ. Π‘ΠΏΠ΅ΡΠΈΠ°Π»ΠΈΡΡ Π΄Π΅ΠΌΠΎΠ½ΡΡΡΠΈΡΡΠ΅Ρ Π²ΡΠ΅ ΡΠ²ΠΎΠΈ Π΄ΠΈΠ·Π°ΠΉΠ½Π΅ΡΡΠΊΠΈΠ΅ ΡΠ΅ΡΠ΅Π½ΠΈΡ, ΠΈΠ· Π½ΠΈΡ Π²ΡΠ±ΠΈΡΠ°Π΅ΡΡΡ ΠΈ ΡΡΠ²Π΅ΡΠΆΠ΄Π°Π΅ΡΡΡ ΡΠ°ΠΌΡΠΉ ΠΏΠΎΠ΄Ρ ΠΎΠ΄ΡΡΠΈΠΉ Π²Π°ΡΠΈΠ°Π½Ρ, ΠΊΠΎΡΠΎΡΡΠΉ Π±ΡΠ΄Π΅Ρ ΠΏΡΠ΅Π΄ΡΡΠ°Π²Π»Π΅Π½ ΡΡΡΠΎΠΈΡΠ΅Π»ΡΠΌ Π΄Π»Ρ ΡΠ΅Π°Π»ΠΈΠ·Π°ΡΠΈΠΈ. ΠΠ»Π°Π½Ρ ΠΎΠ±ΡΠ·Π°ΡΠ΅Π»ΡΠ½ΠΎ Π²ΠΊΠ»ΡΡΠ°ΡΡ:
- ΠΠΎΠ½ΡΠ°ΠΆ ΠΈΠ»ΠΈ Π΄Π΅ΠΌΠΎΠ½ΡΠ°ΠΆ ΠΏΠ΅ΡΠ΅Π³ΠΎΡΠΎΠ΄ΠΎΠΊ Ρ ΡΠΊΠ°Π·Π°Π½ΠΈΠ΅ΠΌ Π²ΡΠ΅Ρ ΠΎΡΠ½ΠΎΠ²Π½ΡΡ ΠΏΠ°ΡΠ°ΠΌΠ΅ΡΡΠΎΠ² β Π²ΡΡΠΎΡΡ, ΡΠΈΡΠΈΠ½Ρ, Π΄Π»ΠΈΠ½Ρ. ΠΡΠΎΠΏΠΈΡΡΠ²Π°Π΅ΡΡΡ, ΠΊΠ°ΠΊΠΈΠΌΠΈ ΠΎΠ½ΠΈ Π±ΡΠ»ΠΈ Π΄ΠΎ ΡΠ΅ΠΌΠΎΠ½ΡΠ° ΠΈ ΠΊΠ°ΠΊΠΈΠΌΠΈ Π΄ΠΎΠ»ΠΆΠ½Ρ ΡΡΠ°ΡΡ ΠΏΠΎΡΠ»Π΅ Π΅Π³ΠΎ ΠΎΠΊΠΎΠ½ΡΠ°Π½ΠΈΡ.
- ΠΠ°ΡΠ΅Π»ΡΠ½Π°Ρ ΠΈΠ»ΠΈ ΠΊΠ΅ΡΠ°ΠΌΠΈΡΠ΅ΡΠΊΠ°Ρ ΠΏΠ»ΠΈΡΠΊΠ° ΡΠΎ ΡΡ Π΅ΠΌΠΎΠΉ ΡΠΊΠ»Π°Π΄ΠΊΠΈ. Π’ΠΎΡΠ½ΠΎ ΡΠ°ΠΊ ΠΆΠ΅ ΡΠΎΡΡΠ°Π²Π»ΡΠ΅ΡΡΡ ΡΠ°Π·ΠΌΠ΅ΡΠΊΠ° Π΄Π»Ρ Π²ΡΠ΅Ρ Π½Π°ΠΏΠΎΠ»ΡΠ½ΡΡ ΠΏΠΎΠΊΡΡΡΠΈΠΉ β Π½Π°ΠΏΡΠΈΠΌΠ΅Ρ, Π»Π°ΠΌΠΈΠ½Π°ΡΠ° ΠΈΠ»ΠΈ ΠΏΠ°ΡΠΊΠ΅ΡΠ°.
- ΠΡΠ»ΠΈ ΠΏΡΠ΅Π΄ΠΏΠΎΠ»Π°Π³Π°ΡΡΡΡ Π½ΠΈΡΠΈ Π΄Π»Ρ Π²ΡΡΡΠ°ΠΈΠ²Π°Π΅ΠΌΠΎΠΉ ΠΌΠ΅Π±Π΅Π»ΠΈ β ΠΎΠ½ΠΈ ΡΠ°ΠΊΠΆΠ΅ ΡΠΈΠΊΡΠΈΡΡΡΡΡΡ Π² ΠΏΠ»Π°Π½Π΅.
ΠΠ±ΡΠ·Π°ΡΠ΅Π»ΡΠ½ΠΎ ΡΠΊΠ°Π·ΡΠ²Π°ΡΡΡΡ ΠΈΡ
ΡΠ°Π·ΠΌΠ΅ΡΡ Ρ ΡΡΠ΅ΡΠΎΠΌ ΠΏΠ°ΡΠ°ΠΌΠ΅ΡΡΠΎΠ² ΠΌΠ΅Π±Π΅Π»ΠΈ, Π΄Π»Ρ ΠΊΠΎΡΠΎΡΠΎΠΉ ΠΎΠ½ΠΈ ΠΏΡΠ΅Π΄Π½Π°Π·Π½Π°ΡΠ΅Π½Ρ. - Π‘Ρ Π΅ΠΌΠ° ΡΠ°ΡΡΡΠ°Π½ΠΎΠ²ΠΊΠΈ ΠΌΠ΅Π±Π΅Π»ΠΈ, ΠΏΡΠ΅Π΄ΡΡΠ°Π²Π»ΡΡΡΠ°Ρ ΡΠΎΠ±ΠΎΠΉ ΡΠ²Π΅ΡΠ½ΠΎΠΉ ΡΠΈΡΡΠ½ΠΎΠΊ. ΠΠ°ΠΆΠ΄Π°Ρ ΠΊΠΎΠΌΠ½Π°ΡΠ° ΠΏΡΠΎΡΠΈΡΠΎΠ²ΡΠ²Π°Π΅ΡΡΡ ΡΠ°ΠΊ, ΠΊΠ°ΠΊ ΠΎΠ½Π° Π±ΡΠ΄Π΅Ρ Π²ΡΠ³Π»ΡΠ΄Π΅ΡΡ Π² ΡΠ΅Π°Π»ΡΠ½ΠΎΡΡΠΈ.
- Π‘Ρ Π΅ΠΌΠ°ΡΠΈΡΠ΅ΡΠΊΠΈΠΉ ΡΠ°Π·ΡΠ΅Π· ΠΏΠΎΡΠΎΠ»ΠΊΠ° ΠΈ ΠΏΠΎΠ»Π° Ρ ΡΠΊΠ°Π·Π°Π½ΠΈΠ΅ΠΌ ΠΌΠ°ΡΠ΅ΡΠΈΠ°Π»ΠΎΠ², ΠΈΠ· ΠΊΠΎΡΠΎΡΡΡ ΠΎΠ½ΠΈ ΡΠ΄Π΅Π»Π°Π½Ρ, ΠΈ ΠΊΠΎΠ»ΠΈΡΠ΅ΡΡΠ²Π° ΡΠ»ΠΎΠ΅Π². ΠΡΠ»ΠΈ ΠΏΡΠ΅Π΄ΠΏΠΎΠ»Π°Π³Π°Π΅ΡΡΡ ΠΌΠΎΠ½ΡΠ°ΠΆ ΡΠΎΡΠ΅ΡΠ½ΠΎΠ³ΠΎ ΠΎΡΠ²Π΅ΡΠ΅Π½ΠΈΡ, ΡΠΊΠ°Π·ΡΠ²Π°ΡΡΡΡ ΠΌΠ΅ΡΡΠ°, Π³Π΄Π΅ Π±ΡΠ΄ΡΡ ΡΠ°ΡΠΏΠΎΠ»Π°Π³Π°ΡΡΡΡ ΡΠ²Π΅ΡΠΈΠ»ΡΠ½ΠΈΠΊΠΈ.
ΠΠ»Π°Π½ ΡΡΡΠ°Π½ΠΎΠ²ΠΊΠΈ ΡΠ»Π΅ΠΊΡΡΠΈΡΠ΅ΡΠΊΠΈΡ ΡΡΡΡΠΎΠΉΡΡΠ²
ΠΠ»Π΅ΠΊΡΡΠΎΠΏΡΠΎΠ²ΠΎΠ΄ΠΊΠ° Π΄Π΅Π»Π°Π΅ΡΡΡ Π² ΡΡΠ΅Π½Π°Ρ , ΠΏΠΎΡΡΠΎΠΌΡ ΠΎΠ± Π΅Π΅ ΠΎΡΠ³Π°Π½ΠΈΠ·Π°ΡΠΈΠΈ Π΄ΡΠΌΠ°ΡΡ Π΅ΡΠ΅ Π½Π° ΡΡΠ°ΠΏΠ΅ ΠΏΡΠΎΠ΅ΠΊΡΠΈΡΠΎΠ²Π°Π½ΠΈΡ. Π‘Ρ Π΅ΠΌΠ° ΡΠ»Π΅ΠΊΡΡΠΎΠΏΡΠΎΠ²ΠΎΠ΄ΠΊΠΈ Π·Π°Π²ΠΈΡΠΈΡ ΠΎΡ ΡΠΎΠ³ΠΎ, Π³Π΄Π΅ ΡΠ°ΡΠΏΠΎΠ»ΠΎΠΆΠ°ΡΡΡ ΡΠ²Π΅ΡΠΈΠ»ΡΠ½ΠΈΠΊΠΈ ΠΈ ΠΊΠ°ΠΊΠΈΠΌΠΈ ΠΎΠ½ΠΈ Π±ΡΠ΄ΡΡ. ΠΠ°ΠΆΠ½ΠΎ, ΡΡΠΎΠ±Ρ Π²ΡΠ΅ ΡΠ°ΡΡΠ΅ΡΡ Π±ΡΠ»ΠΈ Π²ΡΠΏΠΎΠ»Π½Π΅Π½Ρ Ρ ΡΡΠ΅ΡΠΎΠΌ ΡΡΡΠ΅ΡΡΠ²ΡΡΡΠΈΡ ΠΠΠ‘Π’ΠΎΠ² ΠΈ Π‘ΠΠΈΠΠΎΠ² ΠΎΡΠ½ΠΎΡΠΈΡΠ΅Π»ΡΠ½ΠΎ ΠΌΠΎΡΠ½ΠΎΡΡΠΈ, Π²ΡΡΠΎΡΡ ΠΈ Π΄Π»ΠΈΠ½Ρ ΠΊΠ°Π±Π΅Π»Ρ.
Π£ΡΠΈΡΡΠ²Π°Π΅ΡΡΡ, Π² ΠΏΠ΅ΡΠ²ΡΡ ΠΎΡΠ΅ΡΠ΅Π΄Ρ, ΡΠ°Π·ΠΌΠ΅ΡΠ΅Π½ΠΈΠ΅ ΠΎΡΠ²Π΅ΡΠΈΡΠ΅Π»ΡΠ½ΠΎΠ³ΠΎ ΠΎΠ±ΠΎΡΡΠ΄ΠΎΠ²Π°Π½ΠΈΡ β Π±ΡΠ°, ΡΠΎΡΠΈΡΠΎΠ² ΠΏΠΎΡΠΎΠ»ΠΎΡΠ½ΡΡ
ΡΠ²Π΅ΡΠΈΠ»ΡΠ½ΠΈΠΊΠΎΠ² ΠΈ ΠΏΡΠΎΡΠΈΡ
. ΠΡΠΎΠΌΠ΅ ΡΠΎΠ³ΠΎ, Π² ΡΠ°ΡΡΠ΅ΡΡ Π²Ρ
ΠΎΠ΄ΠΈΡ ΡΠ°ΡΠΏΠΎΠ»ΠΎΠΆΠ΅Π½ΠΈΠ΅ Π±ΡΡΠΎΠ²ΠΎΠΉ ΡΠ΅Ρ
Π½ΠΈΠΊΠΈ, ΠΊΠΎΡΠΎΡΠΎΠΉ ΡΡΠ΅Π±ΡΠ΅ΡΡΡ ΡΠ»Π΅ΠΊΡΡΠΎΠΏΠΈΡΠ°Π½ΠΈΡ.
Π§Π΅ΡΡΠ΅ΠΆΠΈ Π½Π΅ΡΠΈΠΏΠΎΠ²ΡΡ Π΄Π΅ΡΠ°Π»Π΅ΠΉ
ΠΠ΅ΡΡΠ°Π½Π΄Π°ΡΡΠ½ΡΠΌΠΈ ΡΡΠΈΡΠ°ΡΡΡΡ ΠΏΡΠ΅Π΄ΠΌΠ΅ΡΡ ΠΎΠ±ΡΡΠ°Π½ΠΎΠ²ΠΊΠΈ, ΠΊΠΎΡΠΎΡΡΠ΅ ΠΈΠ·Π³ΠΎΡΠ°Π²Π»ΠΈΠ²Π°ΡΡΡΡ ΠΏΠΎ ΠΈΠ½Π΄ΠΈΠ²ΠΈΠ΄ΡΠ°Π»ΡΠ½ΡΠΌ Π·Π°ΠΊΠ°Π·Π°ΠΌ ΠΈ ΡΠ°Π·ΠΌΠ΅ΡΠ°ΠΌ. ΠΡΠΎ ΠΌΠΎΠΆΠ΅Ρ Π±ΡΡΡ, Π½Π°ΠΏΡΠΈΠΌΠ΅Ρ, Π²ΡΡΡΠΎΠ΅Π½Π½Π°Ρ ΠΌΠ΅Π±Π΅Π»Ρ, ΠΏΠΎΠ»ΠΊΠΈ Π² Π½ΠΈΡΠ°Ρ ΠΈΠ»ΠΈ Π½Π΅ΠΎΡΠ΄ΠΈΠ½Π°ΡΠ½ΡΠ΅ Π΄Π²Π΅ΡΠ½ΡΠ΅ ΠΏΡΠΎΠ΅ΠΌΡ. ΠΡΠ»ΠΈ ΡΠ°ΠΊΠΈΠ΅ ΡΠΎΡΡΠ°Π²Π»ΡΡΡΠΈΠ΅ Π΄ΠΈΠ·Π°ΠΉΠ½Π° ΠΈΠ½ΡΠ΅ΡΡΠ΅ΡΠΎΠ² ΠΏΡΠ΅Π΄ΠΏΠΎΠ»Π°Π³Π°ΡΡΡΡ, ΠΎΠ½ΠΈ ΠΎΠ±ΡΠ·Π°ΡΠ΅Π»ΡΠ½ΠΎ Π²ΠΊΠ»ΡΡΠ°ΡΡΡΡ Π² ΠΏΡΠΎΠ΅ΠΊΡ. Π ΡΠ΄ΠΎΠΌ Ρ ΠΊΠ°ΠΆΠ΄ΡΠΌ ΡΠ»Π΅ΠΌΠ΅Π½ΡΠΎΠΌ ΠΎΠ±ΠΎΠ·Π½Π°ΡΠ°Π΅ΡΡΡ Π΅Π³ΠΎ ΡΠ°Π·ΠΌΠ΅Ρ ΠΈ ΠΏΠ΅ΡΠ΅ΡΠ΅Π½Ρ ΠΌΠ°ΡΠ΅ΡΠΈΠ°Π»ΠΎΠ², ΠΈΠ· ΠΊΠΎΡΠΎΡΡΡ ΠΎΠ½ Π²ΡΠΏΠΎΠ»Π½Π΅Π½.
ΠΡΠΊΠΈΠ·Π½ΠΎΠ΅ ΡΠ΅ΡΠ΅Π½ΠΈΠ΅
ΠΠΎΠΆΠ°Π»ΡΠΉ, ΡΠ°ΠΌΡΠΉ ΠΏΡΠΈΡΡΠ½ΡΠΉ Π΄Π»Ρ Π·Π°ΠΊΠ°Π·ΡΠΈΠΊΠ° ΡΡΠ°ΠΏ ΡΠ°Π±ΠΎΡΡ Π½Π°Π΄ Π΄ΠΈΠ·Π°ΠΉΠ½-ΠΏΡΠΎΠ΅ΠΊΡΠΎΠΌ, Π²Π΅Π΄Ρ ΠΎΠ½ ΠΏΠΎΠ·Π²ΠΎΠ»ΡΠ΅Ρ ΡΠ²ΠΈΠ΄Π΅ΡΡ Π±ΡΠ΄ΡΡΠ΅Π΅ ΠΏΠΎΠΌΠ΅ΡΠ΅Π½ΠΈΠ΅ Π½Π΅ Π½Π° ΡΠ΅ΡΡΠ΅ΠΆΠ°Ρ
ΠΈ ΡΡ
Π΅ΠΌΠ°Ρ
, Π° ΠΏΡΠ°ΠΊΡΠΈΡΠ΅ΡΠΊΠΈ Π²ΠΎΠΎΡΠΈΡ, Ρ ΠΏΠΎΠΌΠΎΡΡΡ ΡΡΠ΅Ρ
ΠΌΠ΅ΡΠ½ΠΎΠ³ΠΎ ΠΈΠ·ΠΎΠ±ΡΠ°ΠΆΠ΅Π½ΠΈΡ. ΠΠΎΡΠ²Π»ΡΠ΅ΡΡΡ Π²ΠΎΠ·ΠΌΠΎΠΆΠ½ΠΎΡΡΡ Π²Π½ΠΈΠΌΠ°ΡΠ΅Π»ΡΠ½ΠΎ ΡΠ°ΡΡΠΌΠΎΡΡΠ΅ΡΡ ΠΊΠ°ΠΆΠ΄ΡΡ ΠΊΠΎΠΌΠ½Π°ΡΡ ΠΈ ΠΏΠΎΠ½ΡΡΡ, ΠΊΠ°ΠΊ ΠΎΠ½Π° Π±ΡΠ΄Π΅Ρ Π²ΡΠ³Π»ΡΠ΄Π΅ΡΡ Π² Π³ΠΎΡΠΎΠ²ΠΎΠΌ Π²Π°ΡΠΈΠ°Π½ΡΠ΅, Ρ ΠΎΡΠ΄Π΅Π»ΠΊΠΎΠΉ ΠΈ ΠΌΠ΅Π±Π΅Π»ΡΡ.
Π’ΡΠ΅Ρ ΠΌΠ΅ΡΠ½Π°Ρ Π²ΠΈΠ·ΡΠ°Π»ΠΈΠ·Π°ΡΠΈΡ ΠΈΠ½ΡΠ΅ΡΡΠ΅ΡΠ°
Π‘ΡΡΠ΅ΡΡΠ²ΡΠ΅Ρ ΠΌΠ½ΠΎΠΆΠ΅ΡΡΠ²ΠΎ ΠΏΡΠΎΠ³ΡΠ°ΠΌΠΌ (Π½Π°ΠΏΡΠΈΠΌΠ΅Ρ, AutoCad, 3d max), ΠΊΠΎΡΠΎΡΡΠ΅ Π΄ΠΈΠ·Π°ΠΉΠ½Π΅Ρ ΠΈΡΠΏΠΎΠ»ΡΠ·ΡΠ΅Ρ Π² ΡΠ²ΠΎΠ΅ΠΉ ΡΠ°Π±ΠΎΡΠ΅, Π² ΡΠΎΠΌ ΡΠΈΡΠ»Π΅ β ΠΏΡΠ΅Π΄Π½Π°Π·Π½Π°ΡΠ΅Π½Π½ΡΡ Π΄Π»Ρ 3D-Π²ΠΈΠ·ΡΠ°Π»ΠΈΠ·Π°ΡΠΈΠΈ ΡΠ°Π·ΡΠ°Π±ΠΎΡΠ°Π½Π½ΡΡ ΠΈΠΌ ΡΠ΅ΡΠ΅Π½ΠΈΠΉ. ΠΠ½Π° ΡΠΎΡΡΠ°Π²Π»ΡΠ΅ΡΡΡ Π½Π° ΠΎΡΠ½ΠΎΠ²Π΅ Π²ΡΠ΅Ρ ΠΏΡΠΈΠ½ΡΡΡΡ ΡΠ°Π½Π΅Π΅ ΡΠ΅ΡΡΠ΅ΠΆΠ΅ΠΉ ΠΈ ΠΏΠ»Π°Π½ΠΎΠ² ΠΈ ΠΏΠΎΠ·Π²ΠΎΠ»ΡΠ΅Ρ ΡΠ²ΠΈΠ΄Π΅ΡΡ ΠΏΠΎΠΌΠ΅ΡΠ΅Π½ΠΈΠ΅ ΠΏΠΎΡΠ»Π΅ ΡΠ΅ΠΌΠΎΠ½ΡΠ° Π² ΠΎΠ±ΡΠ΅ΠΌΠ½ΠΎΠΌ Π²Π°ΡΠΈΠ°Π½ΡΠ΅, ΠΏΡΠΈΡΠ΅ΠΌ Ρ ΡΡΠ΅ΡΠΎΠΌ Π²ΡΠ΅Ρ Π΄Π΅ΡΠ°Π»Π΅ΠΉ ΠΈ ΠΏΡΠ΅Π΄ΠΌΠ΅ΡΠΎΠ² Π΄Π΅ΠΊΠΎΡΠ°, ΠΏΡΠ΅Π΄ΡΡΠΌΠΎΡΡΠ΅Π½Π½ΡΡ ΠΏΡΠΎΠ΅ΠΊΡΠΎΠΌ. ΠΠΌΠ΅Π½Π½ΠΎ ΡΡΠΎΡ Π΄ΠΎΠΊΡΠΌΠ΅Π½Ρ ΡΠΎΡΠΌΠΈΡΡΠ΅Ρ ΠΏΠΎΠ»Π½ΠΎΠ΅ ΠΏΡΠ΅Π΄ΡΡΠ°Π²Π»Π΅Π½ΠΈΠ΅ ΠΎΠ± ΠΎΡΠ²Π΅ΡΠ΅Π½ΠΈΠΈ, Π·ΠΎΠ½ΠΈΡΠΎΠ²Π°Π½ΠΈΠΈ ΠΏΡΠΎΡΡΡΠ°Π½ΡΡΠ²Π° ΠΈ ΠΏΠΎΠ·Π²ΠΎΠ»ΡΠ΅Ρ Π²Π½Π΅ΡΡΠΈ ΠΏΡΠ°Π²ΠΊΠΈ, Π΅ΡΠ»ΠΈ ΡΡΠΎ-ΡΠΎ Π² ΠΏΡΠ΅Π΄Π»ΠΎΠΆΠ΅Π½Π½ΡΡ ΡΠ΅ΡΠ΅Π½ΠΈΡΡ Π½Π΅ ΡΡΡΡΠ°ΠΈΠ²Π°Π΅Ρ Π·Π°ΠΊΠ°Π·ΡΠΈΠΊΠ° ΠΈΠ»ΠΈ Π΄ΠΈΠ·Π°ΠΉΠ½Π΅ΡΠ°.
Π Π°Π±ΠΎΡΠ°Ρ Π΄ΠΎΠΊΡΠΌΠ΅Π½ΡΠ°ΡΠΈΡ
ΠΠ°Π΄Π°ΡΠ° Π΄ΠΈΠ·Π°ΠΉΠ½Π΅ΡΠ° β Π½Π΅ ΠΏΡΠΎΡΡΠΎ ΠΏΡΠΎΠ΄ΡΠΌΠ°ΡΡ ΡΠΎΡΡΠ°Π² ΡΠ΅ΡΡΠ΅ΠΆΠ΅ΠΉ ΠΈ ΡΠ΅ΡΠΈΡΡ, ΠΊΠ°ΠΊ Π±ΡΠ΄Π΅Ρ Π²ΡΠ³Π»ΡΠ΄Π΅ΡΡ ΠΏΠΎΠΌΠ΅ΡΠ΅Π½ΠΈΠ΅ Π² Π·Π°Π²ΠΈΡΠΈΠΌΠΎΡΡΠΈ ΠΎΡ ΡΡΠΈΠ»Ρ ΠΆΠΈΠ·Π½ΠΈ ΠΈ ΠΏΠΎΠΆΠ΅Π»Π°Π½ΠΈΠΉ Ρ
ΠΎΠ·ΡΠ΅Π², Π½ΠΎ ΠΈ ΠΏΡΠ΅Π΄Π»ΠΎΠΆΠΈΡΡ ΠΏΠ΅ΡΠ΅ΡΠ΅Π½Ρ ΠΌΠ°ΡΠ΅ΡΠΈΠ°Π»ΠΎΠ² Π΄Π»Ρ ΡΠ΅Π°Π»ΠΈΠ·Π°ΡΠΈΠΈ Π·Π°Π΄ΡΠΌΠ°Π½Π½ΠΎΠ³ΠΎ ΠΈ ΡΠΎΡΡΠ°Π²Π»Π΅Π½ΠΈΡ ΡΠΌΠ΅ΡΡ.
ΠΠΎΡΡΠΎΠΌΡ Π½Π° Π·Π°Π²Π΅ΡΡΠ°ΡΡΠ΅ΠΌ ΡΡΠ°ΠΏΠ΅, ΠΏΠΎΡΠ»Π΅ ΡΡΠ²Π΅ΡΠΆΠ΄Π΅Π½ΠΈΡ Π·Π°ΠΊΠ°Π·ΡΠΈΠΊΠΎΠΌ Π²ΡΠ΅Ρ
ΠΏΠ΅ΡΠ΅ΡΠΈΡΠ»Π΅Π½Π½ΡΡ
Π²ΡΡΠ΅ Π΄ΠΎΠΊΡΠΌΠ΅Π½ΡΠΎΠ², Π΄ΠΈΠ·Π°ΠΉΠ½Π΅Ρ ΡΠΎΡΡΠ°Π²Π»ΡΠ΅Ρ ΡΠ²ΠΎΠ΄Π½ΡΡ ΡΠ°Π±Π»ΠΈΡΡ, Π² ΠΊΠΎΡΠΎΡΡΡ Π·Π°Π½ΠΎΡΠΈΡ Π²ΡΠ΅ ΠΌΠ°ΡΠ΅ΡΠΈΠ°Π»Ρ, ΠΊΠΎΡΠΎΡΡΠ΅ Π±ΡΠ΄ΡΡ ΠΈΡΠΏΠΎΠ»ΡΠ·ΠΎΠ²Π°Π½Ρ.
ΠΠΎΡΠ»Π΅ Π·Π°Π²Π΅ΡΡΠ΅Π½ΠΈΡ ΡΠ°Π±ΠΎΡΡ Π½Π°Π΄ ΠΏΡΠΎΠ΅ΠΊΡΠΎΠΌ Ρ Π·Π°ΠΊΠ°Π·ΡΠΈΠΊΠ° Π½Π° ΡΡΠΊΠ°Ρ ΠΎΡΡΠ°Π΅ΡΡΡ ΠΏΠ°ΠΊΠ΅Ρ Π΄ΠΎΠΊΡΠΌΠ΅Π½ΡΠΎΠ², ΠΊΠΎΡΠΎΡΡΠΌΠΈ ΠΎΠ½ ΡΡΠΊΠΎΠ²ΠΎΠ΄ΡΡΠ²ΡΠ΅ΡΡΡ ΠΏΡΠΈ ΠΊΠΎΠ½ΡΡΠΎΠ»Π΅ Π½Π°Π΄ Π²ΡΠΏΠΎΠ»Π½Π΅Π½ΠΈΠ΅ΠΌ ΡΠ°Π±ΠΎΡ ΠΈ ΡΠ΅Π°Π»ΠΈΠ·Π°ΡΠΈΠ΅ΠΉ Π΄ΠΈΠ·Π°ΠΉΠ½Π΅ΡΡΠΊΠΈΡ Π·Π°Π΄ΡΠΌΠΎΠΊ. Π ΡΡΠΎΡ ΠΏΠ΅ΡΠ΅ΡΠ΅Π½Ρ Π²Ρ ΠΎΠ΄ΡΡ:
- Π‘Π²ΠΎΠ΄Π½Π°Ρ ΡΠ°Π±Π»ΠΈΡΠ° ΠΏΠΎ ΠΊΠ°ΠΆΠ΄ΠΎΠΌΡ ΠΏΠΎΠΌΠ΅ΡΠ΅Π½ΠΈΡ, Π² ΠΊΠΎΡΠΎΡΠΎΠΉ ΡΠΊΠ°Π·ΡΠ²Π°Π΅ΡΡΡ ΡΠΏΠΈΡΠΎΠΊ ΠΈΡΠΏΠΎΠ»ΡΠ·ΡΠ΅ΠΌΡΡ ΠΌΠ°ΡΠ΅ΡΠΈΠ°Π»ΠΎΠ² Ρ ΡΠΊΠ°Π·Π°Π½ΠΈΠ΅ΠΌ ΠΈΡ ΠΊΠΎΠ»ΠΈΡΠ΅ΡΡΠ²Π°, Π±ΡΠ΅Π½Π΄ΠΎΠ², ΠΏΡΠΎΠΈΠ·Π²ΠΎΠ΄ΠΈΡΠ΅Π»Π΅ΠΉ, ΠΏΡΠΈΠΌΠ΅ΡΠ½ΠΎΠΉ ΡΡΠΎΠΈΠΌΠΎΡΡΠΈ, ΠΌΠ΅ΡΡ ΠΏΠΎΠΊΡΠΏΠΊΠΈ.
- ΠΠ½Π°Π»ΠΎΠ³ΠΈΡΠ½Π°Ρ Π²Π΅Π΄ΠΎΠΌΠΎΡΡΡ ΠΏΠΎ Π²ΡΠ΅ΠΌ ΠΏΡΠ΅Π΄ΠΌΠ΅ΡΠ°ΠΌ ΠΈΠ½ΡΠ΅ΡΡΠ΅ΡΠ°. Π£ΠΊΠ°Π·ΡΠ²Π°Π΅ΡΡΡ Π½Π΅ ΡΠΎΠ»ΡΠΊΠΎ Π½Π°ΠΈΠΌΠ΅Π½ΠΎΠ²Π°Π½ΠΈΠ΅, Π½ΠΎ ΠΈ ΡΡΠΎΠΈΠΌΠΎΡΡΡ, Π° ΡΠ°ΠΊΠΆΠ΅ ΠΊΠΎΠ½ΠΊΡΠ΅ΡΠ½ΡΠ΅ ΠΌΠ΅ΡΡΠ°, Π³Π΄Π΅ ΠΌΠΎΠΆΠ½ΠΎ ΠΊΡΠΏΠΈΡΡ ΡΠΎΡ ΠΈΠ»ΠΈ ΠΈΠ½ΠΎΠΉ ΡΠΊΠ°Ρ ΠΈΠ»ΠΈ, Π½Π°ΠΏΡΠΈΠΌΠ΅Ρ, ΠΎΡΠ²Π΅ΡΠΈΡΠ΅Π»ΡΠ½ΡΠΉ ΠΏΡΠΈΠ±ΠΎΡ.
- ΠΡΠ΅ ΡΠ΅ΡΡΠ΅ΠΆΠΈ, Π½Π΅ΠΎΠ±Ρ
ΠΎΠ΄ΠΈΠΌΡΠ΅ Π΄Π»Ρ ΠΏΡΠΎΠ²Π΅Π΄Π΅Π½ΠΈΡ ΡΠ΅ΠΌΠΎΠ½ΡΠ½ΡΡ
ΡΠ°Π±ΠΎΡ. Π‘ΠΎΡΡΠ°Π² ΡΠ΅ΡΡΠ΅ΠΆΠ΅ΠΉ — ΡΡΠΎ Π΄Π΅ΡΠ°Π»ΠΈ ΠΏΠ΅ΡΠ΅ΠΏΠ»Π°Π½ΠΈΡΠΎΠ²ΠΊΠΈ, ΡΡ
Π΅ΠΌΠ° ΡΠ»Π΅ΠΊΡΡΠΈΡΠ΅ΡΠΊΠΎΠΉ ΡΠ΅ΡΠΈ, Π½Π΅ΡΠΈΠΏΠΎΠ²ΡΠ΅ ΡΠΎΠΎΡΡΠΆΠ΅Π½ΠΈΡ ΠΈ ΡΡΠ°ΠΏΡ ΠΈΡ
ΡΡΡΠ°Π½ΠΎΠ²ΠΊΠΈ.

- ΠΡΠΊΠΈΠ·Ρ ΠΈ Π²ΠΈΠ·ΡΠ°Π»ΠΈΠ·Π°ΡΠΈΠΈ, ΡΡΠΎΠ±Ρ ΡΡΡΠΎΠΈΡΠ΅Π»ΠΈ ΠΏΠΎΠ½ΠΈΠΌΠ°Π»ΠΈ, ΠΊΠ°ΠΊ Π΄ΠΎΠ»ΠΆΠ½ΠΎ Π²ΡΠ³Π»ΡΠ΄Π΅ΡΡ Π³ΠΎΡΠΎΠ²ΠΎΠ΅ ΠΏΠΎΠΌΠ΅ΡΠ΅Π½ΠΈΠ΅, Π° Π·Π°ΠΊΠ°Π·ΡΠΈΠΊ ΠΈΠΌΠ΅Π» ΠΏΡΠ΅Π΄ΡΡΠ°Π²Π»Π΅Π½ΠΈΠ΅ ΠΎ ΠΊΠΎΠ½Π΅ΡΠ½ΠΎΠΉ ΡΠ΅Π»ΠΈ ΡΠ΅ΠΌΠΎΠ½ΡΠ°.
ΠΠ°ΠΆΠ½ΠΎ ΠΏΠΎΠ½ΠΈΠΌΠ°ΡΡ, ΡΡΠΎ ΡΡΠ΅ΡΠ° ΠΎΡΠ²Π΅ΡΡΡΠ²Π΅Π½Π½ΠΎΡΡΠΈ Π΄ΠΈΠ·Π°ΠΉΠ½Π΅ΡΠ° β ΡΠΎΠ»ΡΠΊΠΎ ΠΎΡΠ΄Π΅Π»ΠΎΡΠ½ΡΠ΅ ΡΠ°Π±ΠΎΡΡ ΠΈ ΠΎΡΠΎΡΠΌΠ»Π΅Π½ΠΈΠ΅ Π΄Π΅ΠΊΠΎΡΠ°. ΠΠΌΠ΅Π½Π½ΠΎ Π΄Π»Ρ ΠΊΠΎΠ½ΡΡΠΎΠ»Ρ Π½Π°Π΄ ΠΈΡ Π²ΡΠΏΠΎΠ»Π½Π΅Π½ΠΈΠ΅ΠΌ ΠΎΠ½ ΠΏΡΠΈ Π½Π΅ΠΎΠ±Ρ ΠΎΠ΄ΠΈΠΌΠΎΡΡΠΈ ΠΎΡΡΡΠ΅ΡΡΠ²Π»ΡΠ΅Ρ Π°Π²ΡΠΎΡΡΠΊΠΈΠΉ Π½Π°Π΄Π·ΠΎΡ, Π½ΠΎ ΠΏΡΠΈ ΡΡΠΎΠΌ Π½Π΅ ΠΏΡΠΈΠ½ΠΈΠΌΠ°Π΅Ρ ΡΡΠ°ΡΡΠΈΡ Π² ΡΠΏΡΠ°Π²Π»Π΅Π½ΠΈΠΈ Π±ΡΠΈΠ³Π°Π΄ΠΎΠΉ ΠΌΠ°ΡΡΠ΅ΡΠΎΠ². ΠΠΎΠ½ΡΡΠΎΠ»Ρ Π½Π°Π΄ ΡΡΡΠΎΠΈΡΠ΅Π»ΡΠ½ΡΠΌΠΈ ΡΠ°Π±ΠΎΡΠ°ΠΌΠΈ β ΡΡΠΎ ΡΠΆΠ΅ ΡΠ΅Ρ Π½ΠΈΡΠ΅ΡΠΊΠΈΠΉ Π½Π°Π΄Π·ΠΎΡ, ΠΈ Π΄ΠΈΠ·Π°ΠΉΠ½Π΅Ρ Π² Π΅Π³ΠΎ ΠΎΡΡΡΠ΅ΡΡΠ²Π»Π΅Π½ΠΈΠΈ Π½Π΅ ΡΡΠ°ΡΡΠ²ΡΠ΅Ρ.
ΠΠ²Π°Π»ΠΈΡΠΈΡΠΈΡΠΎΠ²Π°Π½Π½ΡΠΉ ΡΠΏΠ΅ΡΠΈΠ°Π»ΠΈΡΡ Ρ ΠΎΡΠΎΡΠΎ Π·Π½Π°Π΅Ρ ΠΈ ΡΠ΅Π°Π»ΠΈΠ·ΡΠ΅Ρ ΠΏΡΠ°Π²ΠΈΠ»Π° Π΄ΠΈΠ·Π°ΠΉΠ½Π° ΠΈΠ½ΡΠ΅ΡΡΠ΅ΡΠ°, ΠΏΡΠΎΠ΄ΡΠΌΡΠ²Π°Π΅Ρ ΠΊΠΎΠΌΡΠΎΡΡΠ½ΡΡ ΠΈ ΡΠ΄ΠΎΠ±Π½ΡΡ Π΄Π»Ρ Π²ΡΠ΅Ρ ΠΎΠ±ΠΈΡΠ°ΡΠ΅Π»Π΅ΠΉ Π΄ΠΎΠΌΠ° ΠΎΡΠ³Π°Π½ΠΈΠ·Π°ΡΠΈΡ ΠΏΡΠΎΡΡΡΠ°Π½ΡΡΠ²Π°. ΠΡΠΈ ΡΡΠΎΠΌ ΠΎΠ½ Π½Π΅ ΡΡΠ°ΡΡΠ²ΡΠ΅Ρ Π² ΠΏΡΠΎΡΠ΅ΡΡΠ΅ ΡΠΎΠ³Π»Π°ΡΠΎΠ²Π°Π½ΠΈΡ ΡΡΡΠΎΠΈΡΠ΅Π»ΡΠ½ΡΡ ΡΠ°Π±ΠΎΡ, ΠΊΠΎΡΠΎΡΠΎΠ΅ ΠΌΠΎΠΆΠ΅Ρ ΠΏΠΎΡΡΠ΅Π±ΠΎΠ²Π°ΡΡΡΡ, Π΅ΡΠ»ΠΈ ΠΏΠ»Π°Π½ΠΈΡΡΠ΅ΡΡΡ ΠΏΠ΅ΡΠ΅ΠΏΠ»Π°Π½ΠΈΡΠΎΠ²ΠΊΠ°.
Π‘Π½ΠΎΡ ΠΈΠ»ΠΈ ΠΏΠ΅ΡΠ΅Π½ΠΎΡ ΡΡΠ΅Π½, ΡΡΡΠΎΠΈΡΠ΅Π»ΡΡΡΠ²ΠΎ Π½ΠΎΠ²ΡΡ
ΠΏΠ΅ΡΠ΅Π³ΠΎΡΠΎΠ΄ΠΎΠΊ β ΡΠ°Π±ΠΎΡΡ, ΠΊΠΎΡΠΎΡΡΠ΅ ΠΌΠΎΠ³ΡΡ ΠΏΠΎΡΡΠ°Π²ΠΈΡΡ ΠΏΠΎΠ΄ ΡΠ³ΡΠΎΠ·Ρ Π±Π΅Π·ΠΎΠΏΠ°ΡΠ½ΠΎΡΡΡ Π΄ΡΡΠ³ΠΈΡ
ΠΎΠ±ΠΈΡΠ°ΡΠ΅Π»Π΅ΠΉ Π΄ΠΎΠΌΠ°, ΠΏΠΎΡΡΠΎΠΌΡ Π΄Π»Ρ ΠΈΡ
ΠΏΡΠΎΠ²Π΅Π΄Π΅Π½ΠΈΡ Π½Π΅ΠΎΠ±Ρ
ΠΎΠ΄ΠΈΠΌΠΎ ΡΠ°Π·ΡΠ΅ΡΠ΅Π½ΠΈΠ΅ ΠΊΠΎΠ½ΡΡΠΎΠ»ΠΈΡΡΡΡΠΈΡ
ΠΎΡΠ³Π°Π½ΠΎΠ².
ΠΠ³ΠΎ ΠΏΠΎΠ»ΡΡΠ΅Π½ΠΈΠ΅ β ΠΎΠ±ΡΠ·Π°Π½Π½ΠΎΡΡΡ Π·Π°ΠΊΠ°Π·ΡΠΈΠΊΠ°, Π° Π½Π΅ Π΄ΠΈΠ·Π°ΠΉΠ½Π΅ΡΠ°, ΠΈ ΠΎΠ·Π°Π±ΠΎΡΠΈΡΡΡΡ Π½Π°Π»ΠΈΡΠΈΠ΅ΠΌ ΡΠΎΠΎΡΠ²Π΅ΡΡΡΠ²ΡΡΡΠ΅Π³ΠΎ Π΄ΠΎΠΊΡΠΌΠ΅Π½ΡΠ° Π»ΡΡΡΠ΅ Π·Π°ΡΠ°Π½Π΅Π΅, Π½Π° Π½Π°ΡΠ°Π»ΡΠ½ΡΡ
ΡΡΠ°ΠΏΠ°Ρ
ΡΠ°Π±ΠΎΡΡ Π½Π°Π΄ Π΄ΠΈΠ·Π°ΠΉΠ½-ΠΏΡΠΎΠ΅ΠΊΡΠΎΠΌ, ΡΡΠ°Π·Ρ ΠΏΠΎΡΠ»Π΅ ΡΡΠ²Π΅ΡΠΆΠ΄Π΅Π½ΠΈΡ ΠΏΠ»Π°Π½Π° ΠΏΠ΅ΡΠ΅ΠΏΠ»Π°Π½ΠΈΡΠΎΠ²ΠΊΠΈ. Π ΠΏΡΠΎΡΠΈΠ²Π½ΠΎΠΌ ΡΠ»ΡΡΠ°Π΅ ΡΠ΅ΠΌΠΎΠ½Ρ Π·Π°ΡΡΠ½Π΅ΡΡΡ, ΠΈ Π·Π°ΠΊΠ°Π·ΡΠΈΠΊΡ ΠΏΡΠΈΠ΄Π΅ΡΡΡ Π΄ΠΎΠ»Π³ΠΎ ΠΆΠ΄Π°ΡΡ Π²ΠΎΠΏΠ»ΠΎΡΠ΅Π½ΠΈΡ Π·Π°Π΄ΡΠΌΠ°Π½Π½ΠΎΠ³ΠΎ Π² ΡΠ΅Π°Π»ΡΠ½ΠΎΡΡΡ.
ΠΠΈΠ·Π°ΠΉΠ½-ΠΏΡΠΎΠ΅ΠΊΡ β Π½Π΅ΠΎΠ±Ρ ΠΎΠ΄ΠΈΠΌΡΠΉ ΡΡΠ°ΠΏ Π»ΡΠ±ΠΎΠ³ΠΎ ΠΊΠ°ΠΏΠΈΡΠ°Π»ΡΠ½ΠΎΠ³ΠΎ ΡΠ΅ΠΌΠΎΠ½ΡΠ° ΠΈΠ»ΠΈ ΡΡΡΠΎΠΈΡΠ΅Π»ΡΡΡΠ²Π°. ΠΠΌΠ΅Π½Π½ΠΎ ΠΎΠ½ ΠΏΠΎΠΌΠΎΠ³Π°Π΅Ρ Π½Π΅ ΡΠΎΠ»ΡΠΊΠΎ Π³ΡΠ°ΠΌΠΎΡΠ½ΠΎ ΠΈ ΠΊΠΎΠΌΡΠΎΡΡΠ½ΠΎ ΠΎΡΠ³Π°Π½ΠΈΠ·ΠΎΠ²Π°ΡΡ ΠΏΡΠΎΡΡΡΠ°Π½ΡΡΠ²ΠΎ, Π½ΠΎ ΠΈ ΡΡΠΊΠΎΠ½ΠΎΠΌΠΈΡΡ, ΡΠΎΡΠ½ΠΎ ΡΠ°ΡΡΡΠΈΡΠ°Π² ΠΊΠΎΠ»ΠΈΡΠ΅ΡΡΠ²ΠΎ ΠΌΠ°ΡΠ΅ΡΠΈΠ°Π»ΠΎΠ², ΠΊΠΎΡΠΎΡΡΠ΅ Π±ΡΠ΄ΡΡ ΠΈΡΠΏΠΎΠ»ΡΠ·ΠΎΠ²Π°Π½Ρ. ΠΡΠΎ Π΄ΠΎΠΊΡΠΌΠ΅Π½Ρ, ΠΏΠΎΠ·Π²ΠΎΠ»ΡΡΡΠΈΠΉ ΡΠΎΠ·Π΄Π°ΡΡ ΠΏΠΎΠΌΠ΅ΡΠ΅Π½ΠΈΠ΅, ΠΏΠΎΠ»Π½ΠΎΡΡΡΡ ΡΠΎΠΎΡΠ²Π΅ΡΡΡΠ²ΡΡΡΠ΅Π΅ ΠΏΠΎΠΆΠ΅Π»Π°Π½ΠΈΡΠΌ Π·Π°ΠΊΠ°Π·ΡΠΈΠΊΠ°, Ρ ΡΡΠ΅ΡΠΎΠΌ ΡΠ°ΠΌΡΡ ΠΌΠ΅Π»ΠΊΠΈΡ Π΄Π΅ΡΠ°Π»Π΅ΠΉ ΠΈ Π½ΡΠ°Π½ΡΠΎΠ².
Π§ΡΠΎ ΡΠ°ΠΊΠΎΠ΅ Π΄ΠΈΠ·Π°ΠΉΠ½ ΠΏΡΠΎΠ΅ΠΊΡΠ° Π² ΡΠΏΡΠ°Π²Π»Π΅Π½ΠΈΠΈ ΠΏΡΠΎΠ΅ΠΊΡΠ°ΠΌΠΈ?
ΠΠ²Π΅Π΄Π΅Π½ΠΈΠ΅
ΠΠ΅ΡΠ²ΡΠΌ ΡΠ°Π³ΠΎΠΌ ΠΊ ΡΡΠΏΠ΅ΡΠ½ΠΎΠΌΡ ΠΏΡΠΎΠ΅ΠΊΡΡ ΡΠ²Π»ΡΠ΅ΡΡΡ Π΅Π³ΠΎ ΡΠ°Π·ΡΠ°Π±ΠΎΡΠΊΠ°. ΠΠΈΠ·Π°ΠΉΠ½ ΠΏΡΠΎΠ΅ΠΊΡΠ° β ΡΡΠΎ ΠΌΠ΅ΡΠΎΠ΄ ΠΎΡΠ³Π°Π½ΠΈΠ·Π°ΡΠΈΠΈ ΠΈΠ΄Π΅ΠΉ, ΠΌΠ°ΡΠ΅ΡΠΈΠ°Π»ΠΎΠ² ΠΈ ΠΏΡΠΎΡΠ΅ΡΡΠΎΠ² Π΄Π»Ρ Π΄ΠΎΡΡΠΈΠΆΠ΅Π½ΠΈΡ ΠΊΠΎΠ½ΠΊΡΠ΅ΡΠ½ΠΎΠΉ ΡΠ΅Π»ΠΈ. Π ΡΠΊΠΎΠ²ΠΎΠ΄ΠΈΡΠ΅Π»ΠΈ ΠΏΡΠΎΠ΅ΠΊΡΠΎΠ² ΠΏΠΎΠ»Π°Π³Π°ΡΡΡΡ Π½Π° ΠΈΠ½ΡΠ΅Π»Π»Π΅ΠΊΡΡΠ°Π»ΡΠ½ΡΠΉ Π΄ΠΈΠ·Π°ΠΉΠ½, ΡΡΠΎΠ±Ρ ΠΈΠ·Π±Π΅ΠΆΠ°ΡΡ ΠΎΡΠΈΠ±ΠΎΠΊ, ΠΈ ΠΏΡΠ΅Π΄Π»Π°Π³Π°ΡΡ ΠΏΠ°ΡΠ°ΠΌΠ΅ΡΡΡ, ΠΏΠΎΠ·Π²ΠΎΠ»ΡΡΡΠΈΠ΅ ΠΎΡΡΠ»Π΅ΠΆΠΈΠ²Π°ΡΡ ΠΊΠ»ΡΡΠ΅Π²ΡΠ΅ ΠΊΠΎΠΌΠΏΠΎΠ½Π΅Π½ΡΡ ΠΏΡΠΎΠ΅ΠΊΡΠ°, ΡΠ°ΠΊΠΈΠ΅ ΠΊΠ°ΠΊ ΡΡΠΎΠΊΠΈ ΠΈ Π±ΡΠ΄ΠΆΠ΅Ρ.
ΠΠ΅ΠΊΠΎΡΠΎΡΡΠ΅ Π»ΡΠ΄ΠΈ ΡΠΎΠ²Π΅ΡΡΠ°ΡΡ ΠΎΡΠΈΠ±ΠΊΡ, ΡΠΎΡΠΎΠΏΡΡΡ Ρ Π²ΡΠΏΠΎΠ»Π½Π΅Π½ΠΈΠ΅ΠΌ ΠΎΡΠ½ΠΎΠ²Π½ΡΡ ΡΡΠ°ΠΏΠΎΠ² ΠΏΡΠΎΠ΅ΠΊΡΠ°, ΡΠ°ΠΊΠΈΡ ΠΊΠ°ΠΊ ΡΠ°Π·ΡΠ°Π±ΠΎΡΠΊΠ° ΠΏΡΠΎΠ΅ΠΊΡΠ°. ΠΡΠ±ΠΎΠΉ ΠΎΠΏΡΡΠ½ΡΠΉ ΡΡΠΊΠΎΠ²ΠΎΠ΄ΠΈΡΠ΅Π»Ρ ΠΏΡΠΎΠ΅ΠΊΡΠ° ΡΠΊΠ°ΠΆΠ΅Ρ Π²Π°ΠΌ, ΡΡΠΎ ΡΠ΅ΠΌ Π±ΠΎΠ»ΡΡΠ΅ ΡΡΠΈΠ»ΠΈΠΉ Π²Ρ Π²Π»ΠΎΠΆΠΈΡΠ΅ Π² Π½Π°ΡΠ°Π»ΡΠ½ΡΠΉ ΡΡΠ°ΠΏ ΠΏΡΠΎΠ΅ΠΊΡΠ°, ΡΠ΅ΠΌ Π»ΡΡΡΠ΅ Π±ΡΠ΄ΡΡ Π΅Π³ΠΎ ΡΠ΅Π·ΡΠ»ΡΡΠ°ΡΡ.
ΠΡΠΎΠ΅ΠΊΡΡ Π΄ΠΈΠ·Π°ΠΉΠ½Π° ΠΎΡΠ»ΠΈΡΠ°ΡΡΡΡ ΠΎΡ ΠΏΡΠΎΠ΅ΠΊΡΠΎΠ² Π΄ΡΡΠ³ΠΈΡ ΡΠΈΠΏΠΎΠ². ΠΠΎΡΠΊΠΎΠ»ΡΠΊΡ Π΄ΠΈΠ·Π°ΠΉΠ½ β ΡΠ°ΠΊΠ°Ρ ΡΡΠ±ΡΠ΅ΠΊΡΠΈΠ²Π½Π°Ρ Π½Π°ΡΠΊΠ°, ΠΏΠΎΡΡΠΈ Π½Π°Π²Π΅ΡΠ½ΡΠΊΠ° Π±ΡΠ΄Π΅Ρ Π±ΠΎΠ»ΡΡΠ΅ ΠΊΠΎΡΡΠ΅ΠΊΡΠΈΡΠΎΠ²ΠΎΠΊ ΠΈ ΠΈΡΠΏΡΠ°Π²Π»Π΅Π½ΠΈΠΉ, ΡΠ΅ΠΌ Π² Π΄ΡΡΠ³ΠΈΡ Π²ΠΈΠ΄Π°Ρ ΠΏΡΠΎΠ΅ΠΊΡΠΎΠ². ΠΡΠΎ ΡΠ°ΠΊΠΆΠ΅ ΡΡΠ΅Π±ΡΠ΅Ρ ΠΊΠΎΠΎΡΠ΄ΠΈΠ½Π°ΡΠΈΠΈ ΡΠ°Π·Π»ΠΈΡΠ½ΡΡ ΡΠΏΠΎΡΠΎΠ±Π½ΠΎΡΡΠ΅ΠΉ ΠΈ ΠΈΡΡΠΎΡΠ½ΠΈΠΊΠΎΠ² Π²Π²ΠΎΠ΄Π°. Π‘ΡΡΠ΅ΡΡΠ²ΡΠ΅Ρ ΡΠ΅Π°Π»ΡΠ½ΡΠΉ ΡΠΈΡΠΊ ΡΠΎΠ³ΠΎ, ΡΡΠΎ ΡΠ»ΠΈΡΠΊΠΎΠΌ ΠΌΠ½ΠΎΠ³ΠΎ ΠΏΠΎΠ²Π°ΡΠΎΠ² ΠΈΡΠΏΠΎΡΡΡΡ Π±ΡΠ»ΡΠΎΠ½ ΠΈΠ»ΠΈ, Ρ ΡΠΎΡΠΊΠΈ Π·ΡΠ΅Π½ΠΈΡ Π΄ΠΈΠ·Π°ΠΉΠ½Π°, ΡΠ»ΠΈΡΠΊΠΎΠΌ ΠΌΠ½ΠΎΠ³ΠΎ ΠΊΡΠ΅Π°ΡΠΈΠ²ΡΠΈΠΊΠΎΠ² ΠΈΡΠΏΠΎΡΡΡΡ ΠΌΠ°ΠΊΠ΅Ρ.
Β
Π’Π°ΠΊ ΡΡΠΎ ΠΆΠ΅ ΡΠ°ΠΊΠΎΠ΅ Π΄ΠΈΠ·Π°ΠΉΠ½ ΠΏΡΠΎΠ΅ΠΊΡΠ°?
ΠΠ΄Π½ΠΎΠΉ ΠΈΠ· ΠΏΠ΅ΡΠ²ΡΡ
ΡΠΎΠ»Π΅ΠΉ ΠΌΠ΅Π½Π΅Π΄ΠΆΠ΅ΡΠ° ΠΏΡΠΎΠ΅ΠΊΡΠ° ΡΠ²Π»ΡΠ΅ΡΡΡ ΡΠ°Π·ΡΠ°Π±ΠΎΡΠΊΠ° ΠΏΡΠΎΠ΅ΠΊΡΠ°. ΠΠ° ΡΡΠΎΠΌ ΡΡΠ°ΠΏΠ΅ ΠΏΡΠΈΠ½ΠΈΠΌΠ°ΡΡΡΡ ΡΠ΅ΡΠ΅Π½ΠΈΡ ΠΎ ΡΠΎΠΌ, ΠΊΠ°ΠΊ ΡΠΏΡΠ°Π²Π»ΡΡΡ ΠΏΡΠΎΠ΅ΠΊΡΠΎΠΌ. ΠΠ»Π°Π½ ΠΏΡΠΎΠ΅ΠΊΡΠ° ΡΠ°Π·ΡΠ°Π±Π°ΡΡΠ²Π°Π΅ΡΡΡ Ρ ΡΡΠ΅ΡΠΎΠΌ ΠΏΠΎΡΡΠ΅Π±Π½ΠΎΡΡΠ΅ΠΉ Π·Π°ΠΈΠ½ΡΠ΅ΡΠ΅ΡΠΎΠ²Π°Π½Π½ΡΡ
ΡΡΠΎΡΠΎΠ½, ΠΎΡΠ³Π°Π½ΠΈΠ·Π°ΡΠΈΠΈ ΠΈ, ΠΊΠΎΠ½Π΅ΡΠ½ΠΎ ΠΆΠ΅, ΡΠ°ΠΌΠΎΠ³ΠΎ ΠΏΡΠΎΠ΅ΠΊΡΠ°. ΠΡΠΎΡ Π΄ΠΎΠΊΡΠΌΠ΅Π½Ρ Π²ΠΏΠΎΡΠ»Π΅Π΄ΡΡΠ²ΠΈΠΈ Π±ΡΠ΄Π΅Ρ ΠΈΡΠΏΠΎΠ»ΡΠ·ΠΎΠ²Π°ΡΡΡΡ Π΄Π»Ρ Π½Π°Π±Π»ΡΠ΄Π΅Π½ΠΈΡ Π·Π° ΠΎΡΡΠ°Π²ΡΠΈΠΌΠΈΡΡ ΡΡΠ°ΠΏΠ°ΠΌΠΈ ΠΏΡΠΎΠ΅ΠΊΡΠ°.
Π‘ Π΄ΡΡΠ³ΠΎΠΉ ΡΡΠΎΡΠΎΠ½Ρ, ΠΌΡΡΠ»Π΅Π½ΠΈΠ΅, Π²ΠΎΠ·Π½ΠΈΠΊΠ°ΡΡΠ΅Π΅ Π²ΠΎ Π²ΡΠ΅ΠΌΡ ΡΠ°Π·ΡΠ°Π±ΠΎΡΠΊΠΈ ΠΏΡΠΎΠ΅ΠΊΡΠ°, ΠΌΠ΅Π½ΡΡΠ΅ ΡΠ²ΡΠ·Π°Π½ΠΎ Ρ ΠΌΠ΅Π»ΠΎΡΠ°ΠΌΠΈ ΠΈ Π±ΠΎΠ»ΡΡΠ΅ ΡΠ²ΡΠ·Π°Π½ΠΎ Ρ ΡΠΏΡΠ°Π²Π»Π΅Π½ΠΈΠ΅ΠΌ ΠΏΡΠΎΠ΅ΠΊΡΠΎΠΌ. ΠΡΠΎΠ³ΡΠ°ΠΌΠΌΠ½ΠΎΠ΅ ΠΎΠ±Π΅ΡΠΏΠ΅ΡΠ΅Π½ΠΈΠ΅ Π΄Π»Ρ ΡΠΏΡΠ°Π²Π»Π΅Π½ΠΈΡ ΠΏΡΠΎΠ΅ΠΊΡΠ°ΠΌΠΈ ΠΌΠΎΠΆΠ΅Ρ ΠΏΠΎΠΌΠΎΡΡ Π² ΠΎΡΠ³Π°Π½ΠΈΠ·Π°ΡΠΈΠΈ ΠΊΠ°ΠΊ ΠΎΠ±ΡΠ΅ΠΉ ΡΡΡΠ°ΡΠ΅Π³ΠΈΠΈ, ΡΠ°ΠΊ ΠΈ ΡΠΎΠ½ΠΊΠΎΡΡΠ΅ΠΉ Π΄ΠΈΠ·Π°ΠΉΠ½Π° ΠΏΡΠΎΠ΅ΠΊΡΠ°. ΠΠ°ΠΏΡΠΈΠΌΠ΅Ρ, ProjectManager Π²ΠΊΠ»ΡΡΠ°Π΅Ρ Π² ΡΠ΅Π±Ρ Π΄ΠΈΠ°Π³ΡΠ°ΠΌΠΌΡ ΠΠ°Π½ΡΠ° Π΄Π»Ρ ΡΠΎΠ·Π΄Π°Π½ΠΈΡ ΠΏΠΎΠ΄ΡΠΎΠ±Π½ΡΡ ΡΠ°ΡΠΏΠΈΡΠ°Π½ΠΈΠΉ, Π° ΡΠ°ΠΊΠΆΠ΅ Π΄ΠΎΡΠΊΠΈ ΠΊΠ°Π½Π±Π°Π½ Π΄Π»Ρ ΠΏΡΠΎΡΡΠΎΠΉ ΡΠΎΠ²ΠΌΠ΅ΡΡΠ½ΠΎΠΉ ΡΠ°Π±ΠΎΡΡ Π½Π°Π΄ ΡΡΡΠ°ΡΠ΅Π³ΠΈΡΠ΅ΡΠΊΠΈΠΌ Π°ΡΠΏΠ΅ΠΊΡΠΎΠΌ ΠΏΠ»Π°Π½ΠΈΡΠΎΠ²Π°Π½ΠΈΡ ΠΏΡΠΎΠ΅ΠΊΡΠ°. Π ΠΎΠ΄Π½ΠΎΠΌ ΠΏΡΠΎΡΡΠΎΠΌ Π² ΠΈΡΠΏΠΎΠ»ΡΠ·ΠΎΠ²Π°Π½ΠΈΠΈ ΠΏΡΠΎΠ³ΡΠ°ΠΌΠΌΠ½ΠΎΠΌ ΠΎΠ±Π΅ΡΠΏΠ΅ΡΠ΅Π½ΠΈΠΈ Π΄Π»Ρ ΡΠΏΡΠ°Π²Π»Π΅Π½ΠΈΡ ΠΏΡΠΎΠ΅ΠΊΡΠ°ΠΌΠΈ Π²Ρ ΠΌΠΎΠΆΠ΅ΡΠ΅ ΡΠΏΡΠ°Π²Π»ΡΡΡ ΡΠ²ΠΎΠ΅ΠΉ ΡΡΡΠ°ΡΠ΅Π³ΠΈΠ΅ΠΉ, ΠΏΠ»Π°Π½ΠΎΠΌ, Π³ΡΠ°ΡΠΈΠΊΠΎΠΌ, Π²ΡΠΏΠΎΠ»Π½Π΅Π½ΠΈΠ΅ΠΌ ΠΈ ΠΎΡΡΠ΅ΡΠ½ΠΎΡΡΡΡ.
ΠΡΠ΅, ΠΎΡ ΡΠΎΠ³ΠΎ, ΠΊΡΠΎ Π½Π΅ΡΠ΅Ρ ΠΎΡΠ²Π΅ΡΡΡΠ²Π΅Π½Π½ΠΎΡΡΡ Π·Π° Π·Π°Π²Π΅ΡΡΠ΅Π½ΠΈΠ΅ ΠΏΡΠΎΠ΅ΠΊΡΠ°, Π΄ΠΎ ΠΎΠΏΠΈΡΠ°Π½ΠΈΡ ΠΏΡΠΎΠ΅ΠΊΡΠ°, Π΅Π³ΠΎ ΡΠ΅Π»Π΅ΠΉ, ΡΠ΅Π·ΡΠ»ΡΡΠ°ΡΠΎΠ² ΠΈ Π·Π°Π΄Π°Ρ, Π²ΠΊΠ»ΡΡΠ΅Π½ΠΎ Π² Π΄ΠΈΠ·Π°ΠΉΠ½ ΠΏΡΠΎΠ΅ΠΊΡΠ°. Π Π½Π΅ΠΌ ΡΠΊΠ°Π·Π°Π½Ρ Π΄Π°ΡΡ, ΠΊΠΎΠ³Π΄Π° ΡΡΠΈ ΡΠ΅Π»ΠΈ, ΡΠ΅Π·ΡΠ»ΡΡΠ°ΡΡ ΠΈ Π·Π°Π΄Π°ΡΠΈ Π±ΡΠ΄ΡΡ Π΄ΠΎΡΡΠΈΠ³Π½ΡΡΡ, Π° ΡΠ°ΠΊΠΆΠ΅ ΠΎΡΠ½ΠΎΠ²Π½ΡΠ΅ ΡΠ΅Π·ΡΠ»ΡΡΠ°ΡΡ, ΠΏΡΠΎΠ΄ΡΠΊΡΡ ΠΈΠ»ΠΈ ΡΡΠ½ΠΊΡΠΈΠΈ, ΠΊΠΎΡΠΎΡΡΠ΅ Π±ΡΠ΄ΡΡ ΡΠ΅Π°Π»ΠΈΠ·ΠΎΠ²Π°Π½Ρ. ΠΠΈΠ·Π°ΠΉΠ½ ΠΏΡΠΎΠ΅ΠΊΡΠ° ΡΠ°ΠΊΠΆΠ΅ Π²ΠΊΠ»ΡΡΠ°Π΅Ρ ΡΠΌΠ΅ΡΡ Π±ΡΠ΄ΠΆΠ΅ΡΠ° ΠΈ ΠΏΠ»Π°Π½ ΠΎΡΡΠ»Π΅ΠΆΠΈΠ²Π°Π½ΠΈΡ ΠΈ ΠΎΡΠ΅Π½ΠΊΠΈ ΠΏΡΠΎΠ³ΡΠ΅ΡΡΠ°.
ΠΠ°ΠΈΠ½ΡΠ΅ΡΠ΅ΡΠΎΠ²Π°Π½Π½ΡΠΌ ΡΡΠΎΡΠΎΠ½Π°ΠΌ ΠΌΠΎΠΆΠ΅Ρ Π±ΡΡΡ ΠΏΡΠ΅Π΄Π»ΠΎΠΆΠ΅Π½ΠΎ Π½Π΅ΡΠΊΠΎΠ»ΡΠΊΠΎ ΠΏΡΠΎΠ΅ΠΊΡΠΎΠ², ΠΈΠ· ΠΊΠΎΡΠΎΡΡΡ
ΠΎΠ½ΠΈ ΠΌΠΎΠ³ΡΡ Π²ΡΠ±ΡΠ°ΡΡ ΡΠΎΡ, ΠΊΠΎΡΠΎΡΡΠΉ Π»ΡΡΡΠ΅ Π²ΡΠ΅Π³ΠΎ ΡΠΎΠΎΡΠ²Π΅ΡΡΡΠ²ΡΠ΅Ρ ΠΈΡ
ΡΡΠ΅Π±ΠΎΠ²Π°Π½ΠΈΡΠΌ.
Π‘ΡΡΡΠΊΡΡΡΠ° Π΄ΠΈΠ·Π°ΠΉΠ½Π° ΠΏΡΠΎΠ΅ΠΊΡΠ°
ΠΠ°ΠΊ Π²Ρ ΠΌΠΎΠΆΠ΅ΡΠ΅ ΡΠΎΠ·Π΄Π°ΡΡ ΠΏΡΠΎΠ΄ΡΠΊΡ, ΠΊΠΎΡΠΎΡΡΠΉ Π²ΡΠΏΠΎΠ»Π½ΡΠ΅Ρ ΡΠ²ΠΎΠΈ ΠΎΠ±Π΅ΡΠ°Π½ΠΈΡ? ΠΡΠΎ Π²ΡΠ·ΠΎΠ²! Π‘ Π΄ΡΡΠ³ΠΎΠΉ ΡΡΠΎΡΠΎΠ½Ρ, ΡΠΏΡΠ°Π²Π»Π΅Π½ΠΈΠ΅ ΠΏΡΠΎΠ΅ΠΊΡΠ°ΠΌΠΈ ΡΠ»Π΅Π΄ΡΠ΅Ρ Π½Π°Π±ΠΎΡΡ ΠΏΡΠΎΡΠ΅Π΄ΡΡ. Π‘ΡΡΠ΅ΡΡΠ²ΡΡΡ ΠΏΡΠΎΡΠ΅ΡΡΡ Π΄Π»Ρ ΠΎΠΏΡΠ΅Π΄Π΅Π»Π΅Π½ΠΈΡ ΠΏΡΠΎΠ΅ΠΊΡΠΎΠ² ΠΈ ΠΏΠΎΡΡΡΠΎΠ΅Π½ΠΈΡ ΠΏΠ»Π°Π½Π° ΡΠ΅Π°Π»ΠΈΠ·Π°ΡΠΈΠΈ. ΠΡΠΎ ΡΠ°ΠΌΡΠ΅ Π²Π°ΠΆΠ½ΡΠ΅ ΡΠ°Π³ΠΈ Π² ΡΠ°Π·Π²ΠΈΡΠΈΠΈ ΠΏΡΠΎΠ΅ΠΊΡΠ°. Π ΡΠ΅Π·ΡΠ»ΡΡΠ°ΡΠ΅ Π²Ρ Π΄ΠΎΠ»ΠΆΠ½Ρ Π²ΠΎΠ²Π»Π΅ΡΡ ΡΠ²ΠΎΡ ΠΊΠΎΠΌΠ°Π½Π΄Ρ ΠΈ Π·Π°ΠΈΠ½ΡΠ΅ΡΠ΅ΡΠΎΠ²Π°Π½Π½ΡΠ΅ ΡΡΠΎΡΠΎΠ½Ρ Π² ΠΏΡΠΎΡΠ΅ΡΡ, ΡΡΠΎΠ±Ρ ΡΠ±Π΅Π΄ΠΈΡΡΡΡ, ΡΡΠΎ Π²Ρ ΠΎΡ Π²Π°ΡΠΈΠ»ΠΈ Π²ΡΠ΅ ΡΠ²ΠΎΠΈ Π±Π°Π·Ρ. ΠΠΈΠΆΠ΅ ΠΏΡΠΈΠ²Π΅Π΄Π΅Π½Ρ 9 ΡΠ°Π³ΠΎΠ² ΡΠ°Π·ΡΠ°Π±ΠΎΡΠΊΠΈ ΠΏΡΠΎΠ΅ΠΊΡΠ°:
Β
1. ΠΠΈΠ΄Π΅Π½ΠΈΠ΅
ΠΠ°ΡΠ²Π»Π΅Π½ΠΈΠ΅ ΠΎ Π²ΠΈΠ΄Π΅Π½ΠΈΠΈ, ΠΎΠΏΠΈΡΡΠ²Π°ΡΡΠ΅Π΅ ΠΏΡΠΎΠ±Π»Π΅ΠΌΡ, ΠΊΠΎΡΠΎΡΡΡ Π½Π΅ΠΎΠ±Ρ ΠΎΠ΄ΠΈΠΌΠΎ ΡΠ΅ΡΠΈΡΡ. ΠΡΠΎ Π²Π»Π΅ΡΠ΅Ρ Π·Π° ΡΠΎΠ±ΠΎΠΉ ΠΎΠΏΡΠ΅Π΄Π΅Π»Π΅Π½ΠΈΠ΅ ΡΠ΅Π»ΠΈ ΠΏΡΠΎΠ΅ΠΊΡΠ°. ΠΠ°ΡΠ²Π»Π΅Π½ΠΈΠ΅ ΠΎ Π²ΠΈΠ΄Π΅Π½ΠΈΠΈ β ΡΡΠΎ ΠΎΡΠΈΡΠΈΠ°Π»ΡΠ½ΡΠΉ Π΄ΠΎΠΊΡΠΌΠ΅Π½Ρ, Π² ΠΊΠΎΡΠΎΡΠΎΠΌ ΠΎΠΏΠΈΡΡΠ²Π°ΡΡΡΡ Π²ΠΎΠ·ΠΌΠΎΠΆΠ½ΠΎΡΡΠΈ ΠΏΡΠΎΠ΅ΠΊΡΠ°. ΠΠ½ ΠΏΡΠ΅Π΄ΠΎΡΡΠ°Π²Π»ΡΠ΅ΡΡΡ Π·Π°ΠΈΠ½ΡΠ΅ΡΠ΅ΡΠΎΠ²Π°Π½Π½ΡΠΌ ΡΡΠΎΡΠΎΠ½Π°ΠΌ Π΄Π»Ρ Π΄Π΅ΠΌΠΎΠ½ΡΡΡΠ°ΡΠΈΠΈ ΠΆΠΈΠ·Π½Π΅ΡΠΏΠΎΡΠΎΠ±Π½ΠΎΡΡΠΈ ΠΈ ΠΏΡΠ΅ΠΈΠΌΡΡΠ΅ΡΡΠ² ΠΏΡΠΎΠ΅ΠΊΡΠ°.
ΠΡΠΎ Π½Π΅ Π΄Π»ΠΈΠ½Π½Π°Ρ ΠΈ ΠΏΠΎΠ΄ΡΠΎΠ±Π½Π°Ρ ΡΡΠ°ΡΡΡ.
Π£ Π²Π°Ρ ΠΌΠΎΠΆΠ΅Ρ Π±ΡΡΡ ΠΊΡΠ°ΡΠΊΠΎΠ΅ ΡΡΠΎΠΏΠΈΡΠ΅ΡΠΊΠΎΠ΅ Π²ΠΈΠ΄Π΅Π½ΠΈΠ΅ ΡΠ΅Π·ΡΠ»ΡΡΠ°ΡΠ° ΠΏΡΠΎΠ΅ΠΊΡΠ°; Π² ΠΊΠΎΠ½ΡΠ΅ ΠΊΠΎΠ½ΡΠΎΠ², ΡΠ°ΠΊ Π²Ρ ΠΏΡΠΎΠ΄Π°Π΅ΡΠ΅ ΠΏΡΠΎΠ΅ΠΊΡ. Π ΡΠ΅Π·ΡΠ»ΡΡΠ°ΡΠ΅ ΡΠΎΠ·Π΄Π°ΠΉΡΠ΅ ΠΊΠ°ΡΡΠΈΠ½Ρ ΡΡΠΏΠ΅Ρ
Π° ΠΏΡΠΎΠ΅ΠΊΡΠ° ΠΈ ΠΏΠΎΠΌΠ΅ΡΡΠΈΡΠ΅ Π΅Π΅ Π² ΠΊΠΎΠ½ΡΠ΅ΠΊΡΡ.
Β
2. ΠΡΠ΅Π΄Π²ΠΈΠ΄Π΅Π½ΠΈΠ΅ Π²ΠΎΠ·ΠΌΠΎΠΆΠ½ΡΡ ΠΏΡΠΎΠ±Π»Π΅ΠΌ
ΠΡ Π΄ΠΎΠ»ΠΆΠ½Ρ ΡΠ½Π°ΡΠ°Π»Π° ΠΎΠΏΡΠ΅Π΄Π΅Π»ΠΈΡΡ ΠΏΡΠΎΠ±Π»Π΅ΠΌΡ, ΠΊΠΎΡΠΎΡΡΡ Π½Π΅ΠΎΠ±Ρ ΠΎΠ΄ΠΈΠΌΠΎ ΡΠ΅ΡΠΈΡΡ, ΡΡΠΎΠ±Ρ ΠΏΠΎΠ΄Π΄Π΅ΡΠΆΠ°ΡΡ Π΄ΠΎΠΊΡΠΌΠ΅Π½Ρ ΠΎ ΠΊΠΎΠ½ΡΠ΅ΠΏΡΠΈΠΈ. Π ΡΠ΅Π·ΡΠ»ΡΡΠ°ΡΠ΅ ΡΠ°ΡΡΠΎ ΡΡΠ΅Π±ΡΠ΅ΡΡΡ ΠΎΡΠ΅Π½ΠΊΠ° ΠΏΠΎΡΡΠ΅Π±Π½ΠΎΡΡΠ΅ΠΉ, ΡΡΠΎΠ±Ρ Π²Ρ ΠΌΠΎΠ³Π»ΠΈ ΡΠ²ΠΈΠ΄Π΅ΡΡ ΠΏΡΠΎΠ±Π»Π΅ΠΌΡ, Ρ ΠΊΠΎΡΠΎΡΡΠΌΠΈ ΡΡΠ°Π»ΠΊΠΈΠ²Π°Π΅ΡΡΡ ΠΊΠΎΠΌΠΏΠ°Π½ΠΈΡ. ΠΡΠΎ ΠΏΡΠΈΠ²Π΅Π΄Π΅Ρ ΠΏΡΠΎΠ±Π»Π΅ΠΌΡ, Π½Π°Π΄ ΠΊΠΎΡΠΎΡΠΎΠΉ Π²Ρ ΡΠ°Π±ΠΎΡΠ°Π΅ΡΠ΅, Π² ΡΠΎΠΎΡΠ²Π΅ΡΡΡΠ²ΠΈΠ΅ Ρ ΠΎΠ±ΡΠΈΠΌ ΠΏΠ»Π°Π½ΠΎΠΌ ΠΎΡΠ³Π°Π½ΠΈΠ·Π°ΡΠΈΠΈ. ΠΡΠΎ ΡΠ°ΠΊΠΆΠ΅ Π΄Π°ΡΡ Π²Π°ΠΌ ΠΈΠ½ΡΠΎΡΠΌΠ°ΡΠΈΡ, Π½Π΅ΠΎΠ±Ρ ΠΎΠ΄ΠΈΠΌΡΡ Π΄Π»Ρ Π½Π°Ρ ΠΎΠΆΠ΄Π΅Π½ΠΈΡ Π½Π°ΠΈΠ»ΡΡΡΠ΅Π³ΠΎ ΡΠ΅ΡΠ΅Π½ΠΈΡ ΡΠΈΡΡΠ°ΡΠΈΠΈ.
ΠΠ»Ρ Π½Π°ΡΠ°Π»Π°, ΠΊΠ°ΠΊΠΈΠ΅ Π΄Π°Π½Π½ΡΠ΅ Π²Ρ ΡΠΎΠ±ΠΈΡΠ°Π΅ΡΠ΅? ΠΠ°ΠΊΠΈΠ΅ Ρ Π²Π°Ρ Π΅ΡΡΡ ΠΈΡΡΠΎΡΠ½ΠΈΠΊΠΈ ΡΠ°ΠΊΠΈΡ Π·Π½Π°Π½ΠΈΠΉ ΠΈ ΠΊΠ°ΠΊ Π²Ρ ΡΠΎΠ±ΠΈΡΠ°Π΅ΡΠ΅ΡΡ ΠΈΡ ΡΠΎΠ±ΠΈΡΠ°ΡΡ? ΠΠ°ΡΠ΅ΠΌ ΠΈΠ·ΡΡΠΈΡΠ΅ ΠΈ ΠΎΠΏΡΠ΅Π΄Π΅Π»ΠΈΡΠ΅ ΠΏΡΠΎΠ±Π»Π΅ΠΌΡ, Π΄Π»Ρ ΡΠ΅ΡΠ΅Π½ΠΈΡ ΠΊΠΎΡΠΎΡΡΡ ΠΏΡΠ΅Π΄Π½Π°Π·Π½Π°ΡΠ΅Π½ Π²Π°Ρ ΠΏΡΠΎΠ΅ΠΊΡ. ΠΡΠ³Π°Π½ΠΈΠ·ΡΠΉΡΠ΅ ΡΠ²ΠΎΠΈ Π²ΡΠ²ΠΎΠ΄Ρ Π² Π΄ΠΎΠΊΡΠΌΠ΅Π½ΡΠ΅.
Β
3. ΠΡΠΎ ΠΈ ΠΊΠ°ΠΊΠΈΠ΅ ΡΠ΅ΡΡΡΡΡ?
ΠΠΏΡΠ΅Π΄Π΅Π»ΠΈΡΠ΅ ΡΠ΅ΡΡΡΡΡ, Π½Π΅ΠΎΠ±Ρ
ΠΎΠ΄ΠΈΠΌΡΠ΅ Π΄Π»Ρ Π·Π°Π²Π΅ΡΡΠ΅Π½ΠΈΡ ΠΏΡΠΎΠ΅ΠΊΡΠ°.
ΠΡΠ΄ΠΈ, ΠΎΠ±ΠΎΡΡΠ΄ΠΎΠ²Π°Π½ΠΈΠ΅ ΠΈ ΠΎΠ±ΡΠ΅ΠΊΡΡ β Π²ΡΠ΅ ΡΡΠΎ ΠΏΡΠΈΠΌΠ΅ΡΡ ΡΠ΅ΡΡΡΡΠΎΠ², Π½Π΅ΠΎΠ±Ρ
ΠΎΠ΄ΠΈΠΌΡΡ
Π΄Π»Ρ ΡΡΠΏΠ΅ΡΠ½ΠΎΠ³ΠΎ Π²ΡΠΏΠΎΠ»Π½Π΅Π½ΠΈΡ ΠΏΡΠΎΠ΅ΠΊΡΠ°. Π’ΠΎΡΠ½ΠΎ ΡΠ°ΠΊ ΠΆΠ΅, ΠΊΠ°ΠΊ ΠΆΡΡΠ½Π°Π»ΠΈΡΡΡ ΡΠ°Π±ΠΎΡΠ°ΡΡ Ρ Π½ΠΎΠ²ΠΎΡΡΡΠΌΠΈ, ΠΈΡΠΏΠΎΠ»ΡΠ·ΡΡ Β«ΠΡΡΡ WΒ»: ΠΊΡΠΎ, ΡΡΠΎ, Π³Π΄Π΅, ΠΊΠΎΠ³Π΄Π° ΠΈ ΠΏΠΎΡΠ΅ΠΌΡ, β ΡΡΠΎ ΠΎΡΠ»ΠΈΡΠ½ΡΠΉ ΠΌΠ΅ΡΠΎΠ΄ Π΄Π»Ρ ΠΎΠΏΡΠ΅Π΄Π΅Π»Π΅Π½ΠΈΡ ΡΠ΅ΡΡΡΡΠΎΠ². ΠΠ°ΠΊΠΈΠ΅ ΡΠ΅ΡΡΡΡΡ Π½Π΅ΠΎΠ±Ρ
ΠΎΠ΄ΠΈΠΌΡ Π΄Π»Ρ Π·Π°Π²Π΅ΡΡΠ΅Π½ΠΈΡ ΠΏΡΠΎΠ΅ΠΊΡΠ°, ΠΊΠ°ΠΊΠΈΠ΅ ΠΈΠ½ΡΡΡΡΠΌΠ΅Π½ΡΡ ΡΠΏΡΠ°Π²Π»Π΅Π½ΠΈΡ ΡΠ΅ΡΡΡΡΠ°ΠΌΠΈ Π½Π΅ΠΎΠ±Ρ
ΠΎΠ΄ΠΈΠΌΡ, Π³Π΄Π΅ Π±ΡΠ΄Π΅Ρ Π²ΡΠΏΠΎΠ»Π½ΡΡΡΡΡ ΡΠ°Π±ΠΎΡΠ°, ΠΊΠΎΠ³Π΄Π° Π½Π°ΡΠ½Π΅ΡΡΡ ΠΈ Π·Π°ΠΊΠΎΠ½ΡΠΈΡΡΡ ΠΏΡΠΎΠ΅ΠΊΡ ΠΈ Π·Π°ΡΠ΅ΠΌ Π½ΡΠΆΠ½Ρ ΡΡΠΈ ΡΠ΅ΡΡΡΡΡ?
Β
4. Π¦Π΅Π»Ρ ΠΏΡΠΎΠ΅ΠΊΡΠ°
ΠΡ Π½Π΅ ΡΠΌΠΎΠΆΠ΅ΡΠ΅ Π΄ΠΎΡΡΠΈΡΡ ΡΠ²ΠΎΠΈΡ ΡΠ΅Π»Π΅ΠΉ, ΠΏΠΎΠΊΠ° Π½Π΅ ΠΎΠΏΡΠ΅Π΄Π΅Π»ΠΈΡΠ΅ ΠΈΡ . Π¦Π΅Π»Ρ β ΡΡΠΎ ΡΠΎ, ΡΡΠΎ ΠΌΠΎΠΆΠ½ΠΎ ΡΠ²ΠΈΠ΄Π΅ΡΡ ΠΈ ΠΈΠ·ΠΌΠ΅ΡΠΈΡΡ Π² ΠΊΠΎΠ½ΡΠ΅ ΠΏΡΠΎΠ΅ΠΊΡΠ°. Π¦Π΅Π»Ρ β ΡΡΠΎ ΡΠΎ ΠΆΠ΅ ΡΠ°ΠΌΠΎΠ΅, ΡΡΠΎ ΠΈ ΡΠ΅ΡΠ΅Π½ΠΈΠ΅ ΠΏΡΠΎΠ±Π»Π΅ΠΌΡ.
Π‘ΠΎΡΡΠ°Π²ΡΡΠ΅ Π·Π°ΡΠ²Π»Π΅Π½ΠΈΠ΅ ΠΎ ΡΠ΅Π»ΠΈ, ΠΎΠ±ΡΡΡΠ½ΡΡΡΠ΅Π΅, ΠΊΠ°ΠΊ Π΄ΠΎΡΡΠΈΠ³Π°ΡΡΡΡ ΡΠ΅Π»ΠΈ ΠΏΡΠΎΠ΅ΠΊΡΠ°. ΠΡΠΏΠΎΠ»ΡΠ·ΡΠΉΡΠ΅ ΠΌΠ΅ΡΠΎΠ΄ SMART, ΠΊΠΎΡΠΎΡΡΠΉ ΠΎΠ·Π½Π°ΡΠ°Π΅Ρ ΠΊΠΎΠ½ΠΊΡΠ΅ΡΠ½ΡΠΉ, ΠΈΠ·ΠΌΠ΅ΡΠΈΠΌΡΠΉ, Π΄ΠΎΡΡΠΈΠΆΠΈΠΌΡΠΉ, ΡΠ΅Π°Π»ΠΈΡΡΠΈΡΠ½ΡΠΉ ΠΈ Π°ΠΊΡΡΠ°Π»ΡΠ½ΡΠΉ Π²ΠΎ Π²ΡΠ΅ΠΌΠ΅Π½ΠΈ, ΡΡΠΎΠ±Ρ Π΄ΠΎΡΡΠΈΡΡ ΡΡΠΎΠ³ΠΎ Ρ ΠΎΡΠΎΡΠΎ. ΠΡΠΈ ΡΠ΅ΡΠΌΠΈΠ½Ρ ΡΠ»Π΅Π΄ΡΠ΅Ρ ΠΈΡΠΏΠΎΠ»ΡΠ·ΠΎΠ²Π°ΡΡ Π΄Π»Ρ ΠΎΠΏΡΠ΅Π΄Π΅Π»Π΅Π½ΠΈΡ ΠΊΠ°ΠΆΠ΄ΠΎΠΉ ΡΠ΅Π»ΠΈ.
Β
5. Π‘ΡΡΠ°ΡΠ΅Π³ΠΈΡ ΠΏΡΠΎΠ΅ΠΊΡΠ°
ΠΠ»Ρ Π΄ΠΎΡΡΠΈΠΆΠ΅Π½ΠΈΡ ΡΠ΅Π»Π΅ΠΉ ΠΏΡΠΎΠ΅ΠΊΡΠ° Π΄ΠΎΠ»ΠΆΠ½Π° ΡΡΡΠ΅ΡΡΠ²ΠΎΠ²Π°ΡΡ ΡΡΡΠ°ΡΠ΅Π³ΠΈΡ.
Π‘ΡΡΠ°ΡΠ΅Π³ΠΈΡ β ΡΡΠΎ ΠΌΠ΅ΡΠΎΠ΄ Π΄ΠΎΡΡΠΈΠΆΠ΅Π½ΠΈΡ ΡΠ΅Π»Π΅ΠΉ ΠΏΡΠΎΠ΅ΠΊΡΠ° ΠΏΡΠΈ ΡΠΎΠ±Π»ΡΠ΄Π΅Π½ΠΈΠΈ ΠΎΠ³ΡΠ°Π½ΠΈΡΠ΅Π½ΠΈΠΉ ΠΏΡΠΎΠ΅ΠΊΡΠ°, ΡΠ°ΠΊΠΈΡ
ΠΊΠ°ΠΊ ΡΠ΅ΡΡΡΡΡ, Π³ΡΠ°ΡΠΈΠΊ ΠΈ Π±ΡΠ΄ΠΆΠ΅Ρ. ΠΠ°ΠΊ ΡΠ°Π·ΡΠ°Π±ΠΎΡΠ°ΡΡ ΠΏΠ»Π°Π½ Π΄Π»Ρ Π΄ΠΎΡΡΠΈΠΆΠ΅Π½ΠΈΡ ΡΠ΅Π»Π΅ΠΉ ΠΏΡΠΎΠ΅ΠΊΡΠ°?
Π Π°ΡΡΠΌΠΎΡΡΠΈΡΠ΅ ΠΏΡΠ΅ΡΠ΅Π΄Π΅Π½ΡΡ ΠΈ ΠΎΠ³Π»ΡΠ½ΠΈΡΠ΅ΡΡ Π½Π° ΠΏΠΎΡ ΠΎΠΆΠΈΠ΅ ΠΏΡΠΎΠ΅ΠΊΡΡ Π² ΠΏΡΠΎΡΠ»ΠΎΠΌ, ΡΡΠΎΠ±Ρ ΡΠ²ΠΈΠ΄Π΅ΡΡ, ΡΡΠΎ ΠΎΠ½ΠΈ ΠΌΠΎΠ³Π»ΠΈ ΡΠ°ΡΡΠΊΠ°Π·Π°ΡΡ ΠΎ ΠΏΡΠ΅ΠΈΠΌΡΡΠ΅ΡΡΠ²Π°Ρ ΠΈ Π½Π΅Π΄ΠΎΡΡΠ°ΡΠΊΠ°Ρ Π²ΡΠ±ΡΠ°Π½Π½ΠΎΠΉ ΠΈΠΌΠΈ ΡΠ°ΠΊΡΠΈΠΊΠΈ. ΠΡΡΡΠΈΠ΅ ΠΌΠ΅ΡΠΎΠ΄Ρ ΡΠΏΡΠ°Π²Π»Π΅Π½ΠΈΡ ΠΏΡΠΎΠ΅ΠΊΡΠ°ΠΌΠΈ Π²ΡΠ΅Π³Π΄Π° ΡΠ²Π»ΡΡΡΡΡ ΠΏΡΠΎΡΠ½ΠΎΠΉ ΠΎΡΠ½ΠΎΠ²ΠΎΠΉ, Π° Π·Π°ΡΠ΅ΠΌ ΠΏΠΎΡΡΠ΅ΠΏΠ΅Π½Π½ΠΎ ΡΠΎΠ·Π΄Π°ΡΡ ΠΏΠ»Π°Π½, ΠΏΡΠΎΠΊΠ»Π°Π΄ΡΠ²Π°Ρ ΠΏΡΡΡ ΠΊ ΡΡΠΏΠ΅Ρ Ρ.
Β
6. Π Π΅Π·Π΅ΡΠ²Π½ΡΠΉ ΠΏΠ»Π°Π½
ΠΠ°ΠΊ ΠΈΠ·Π²Π΅ΡΡΠ½ΠΎ Π»ΡΠ±ΠΎΠΌΡ ΡΡΠΊΠΎΠ²ΠΎΠ΄ΠΈΡΠ΅Π»Ρ ΠΏΡΠΎΠ΅ΠΊΡΠ°, ΠΌΠ°Π»ΠΎ ΡΡΠΎ ΠΈΠ΄Π΅Ρ ΠΏΠΎ ΠΏΠ»Π°Π½Ρ. ΠΠΎΠ»ΠΆΠ΅Π½ Π±ΡΡΡ Π·Π°ΠΏΠ°ΡΠ½ΠΎΠΉ ΠΏΠ»Π°Π½ Π΄Π»Ρ Π±ΡΡΡΡΠΎΠ³ΠΎ ΠΈ ΠΏΡΠ°Π²ΠΈΠ»ΡΠ½ΠΎΠ³ΠΎ ΡΠ΅Π°Π³ΠΈΡΠΎΠ²Π°Π½ΠΈΡ Π½Π° ΠΏΡΠΎΠ±Π»Π΅ΠΌΡ, Π²ΠΎΠ·Π½ΠΈΠΊΠ°ΡΡΠΈΠ΅ Π² Ρ ΠΎΠ΄Π΅ ΠΏΡΠΎΠ΅ΠΊΡΠ°. ΠΠΎΡΡΠΎΠΌΡ ΡΡΠΎ Π½Π΅ΠΎΠ±Ρ ΠΎΠ΄ΠΈΠΌΠΎ ΡΡΠΈΡΡΠ²Π°ΡΡ ΠΏΡΠΈ ΠΏΠ»Π°Π½ΠΈΡΠΎΠ²Π°Π½ΠΈΠΈ Π²Π°ΡΠ΅Π³ΠΎ ΠΏΡΠΎΠ΅ΠΊΡΠ°.
Π‘Π»Π΅Π΄ΠΈΡΠ΅ Π·Π° Π½Π΅Π±Π»Π°Π³ΠΎΠΏΡΠΈΡΡΠ½ΡΠΌΠΈ ΠΎΠΏΠ°ΡΠ½ΠΎΡΡΡΠΌΠΈ ΠΏΡΠΎΠ΅ΠΊΡΠ°. ΠΠ½ΠΈ ΠΏΠΎΠ³ΡΡΠΆΠ°ΡΡΡΡ Π² ΡΠ°ΠΌΡΠ΅ ΡΠ°Π·Π½ΡΠ΅ ΡΡΠ»ΠΎΠ²ΠΈΡ, Π² ΡΠΎΠΌ ΡΠΈΡΠ»Π΅ Π² ΠΊΠΎΠΌΠ°Π½Π΄Ρ, ΠΊΠΎΡΠΎΡΡΠΌ ΠΌΠΎΠΆΠ΅Ρ Π½Π΅ Ρ
Π²Π°ΡΠ°ΡΡ Π½Π°Π²ΡΠΊΠΎΠ², Π½Π΅ΠΈΠ·Π±Π΅ΠΆΠ½ΡΠ΅ ΠΎΡΡΡΡΡΡΠ²ΠΈΡ, ΡΠ΅ΠΊΡΡΠ΅ΡΡΡ ΠΊΠ°Π΄ΡΠΎΠ² ΠΈ ΡΠ°ΠΊ Π΄Π°Π»Π΅Π΅. ΠΠ°Π΄Π΅ΡΠΆΠΊΠΈ ΠΌΠΎΠ³ΡΡ Π½Π°ΡΡΡΠΈΡΡ ΡΠ°ΡΠΏΠΈΡΠ°Π½ΠΈΠ΅.
ΠΠΎΠ·ΠΌΠΎΠΆΠ½ΠΎ, ΡΡΠΎ ΠΎΠ±ΡΠ΅ΠΌ Π½Π΅ Π±ΡΠ» ΡΠ΅ΡΠΊΠΎ ΡΡΡΠ°Π½ΠΎΠ²Π»Π΅Π½. Π Π°ΡΡ
ΠΎΠ΄Ρ Π·Π°Π½ΠΈΠΆΠ°ΡΡΡΡ, ΠΈΠ»ΠΈ ΡΡΠ΅Π΄ΡΡΠ² ΡΡΠ°Π½ΠΎΠ²ΠΈΡΡΡ ΠΌΠ°Π»ΠΎ. Π‘ΠΎΡΡΠ°Π²ΡΡΠ΅ ΠΏΠ»Π°Π½ Π±ΠΎΡΡΠ±Ρ Ρ ΡΡΠΈΠΌΠΈ ΠΎΠΏΠ°ΡΠ½ΠΎΡΡΡΠΌΠΈ.
Β
7. ΠΠ»Π°Π½ ΠΎΡΠ΅Π½ΠΊΠΈ
ΠΡΠΎΠ΅ΠΊΡ Π²ΡΠ΅Π³Π΄Π° Π΄ΠΎΠ»ΠΆΠ΅Π½ ΠΎΡΠ΅Π½ΠΈΠ²Π°ΡΡΡΡ Π² ΡΠΎΠΎΡΠ²Π΅ΡΡΡΠ²ΠΈΠΈ Ρ ΠΏΠ»Π°Π½ΠΎΠΌ ΠΎΡΠ΅Π½ΠΊΠΈ. ΠΠ»Π°Π½ ΠΎΡΠ΅Π½ΠΊΠΈ ΠΏΠΎΠΌΠΎΠΆΠ΅Ρ Π²Π°ΠΌ ΡΠ»Π΅Π΄ΠΈΡΡ Π·Π° ΠΏΡΠΎΠ΅ΠΊΡΠΎΠΌ ΠΈ ΠΌΠΎΠΆΠ΅Ρ Π΄Π°ΠΆΠ΅ ΡΠ²Π΅Π΄ΠΎΠΌΠΈΡΡ Π²Π°Ρ, Π΅ΡΠ»ΠΈ ΠΎΠ½ Π½Π°ΡΠ½Π΅Ρ ΠΎΡΠΊΠ»ΠΎΠ½ΡΡΡΡΡ ΠΎΡ ΠΏΠ΅ΡΠ²ΠΎΠ½Π°ΡΠ°Π»ΡΠ½ΠΎΠ³ΠΎ ΠΏΠ»Π°Π½Π°. ΠΡΠΎΠ°Π½Π°Π»ΠΈΠ·ΠΈΡΡΠΉΡΠ΅ ΠΊΠΎΠΌΠΏΠΎΠ½Π΅Π½ΡΡ, ΡΠ΅Π·ΡΠ»ΡΡΠ°ΡΡ ΠΈ ΠΏΠΎΡΠ»Π΅Π΄ΡΡΠ²ΠΈΡ ΠΏΡΠΎΠ΅ΠΊΡΠ°, ΠΈΡΠΏΠΎΠ»ΡΠ·ΡΡ ΡΡΡ ΡΡΡΠ°ΡΠ΅Π³ΠΈΡ.
ΠΠΎΠ·Π΄Π΅ΠΉΡΡΠ²ΠΈΠ΅ β ΡΡΠΎ ΡΠΎ, Π½Π°ΡΠΊΠΎΠ»ΡΠΊΠΎ Ρ ΠΎΡΠΎΡΠΎ Π΄ΠΎΡΡΠΈΠ³Π°ΡΡΡΡ ΡΠ΅Π»ΠΈ ΠΏΡΠΎΠ΅ΠΊΡΠ°, ΡΠΎΠ³Π΄Π° ΠΊΠ°ΠΊ ΡΠ΅Π·ΡΠ»ΡΡΠ°ΡΡ β ΡΡΠΎ ΠΈΠ·ΠΌΠ΅ΡΠΈΠΌΡΠ΅ ΠΈΠ·ΠΌΠ΅Π½Π΅Π½ΠΈΡ. Π ΡΠ΅Π·ΡΠ»ΡΡΠ°ΡΠ΅ ΠΏΠ»Π°Π½ ΠΎΡΠ΅Π½ΠΊΠΈ ΠΏΡΠ΅Π΄ΡΡΠ°Π²Π»ΡΠ΅Ρ ΡΠΎΠ±ΠΎΠΉ ΠΏΠΎΠ΄ΡΠΎΠ±Π½ΡΠΉ Π΄ΠΎΠΊΡΠΌΠ΅Π½Ρ, ΡΡΡΠ°Π½Π°Π²Π»ΠΈΠ²Π°ΡΡΠΈΠΉ ΠΊΡΠΈΡΠ΅ΡΠΈΠΈ Π΄Π»Ρ ΠΎΠΏΡΠ΅Π΄Π΅Π»Π΅Π½ΠΈΡ ΡΠ΅Π·ΡΠ»ΡΡΠ°ΡΠΈΠ²Π½ΠΎΡΡΠΈ ΠΈ ΡΡΡΠ΅ΠΊΡΠΈΠ²Π½ΠΎΡΡΠΈ ΠΏΡΠΎΠ΅ΠΊΡΠ° ΠΏΡΡΠ΅ΠΌ ΠΎΡΡΠ»Π΅ΠΆΠΈΠ²Π°Π½ΠΈΡ Π²ΡΠ΅Ρ ΠΎΠ±Π»Π°ΡΡΠ΅ΠΉ Ρ ΠΎΠ΄Π° Π²ΡΠΏΠΎΠ»Π½Π΅Π½ΠΈΡ ΠΏΡΠΎΠ΅ΠΊΡΠ°.
Β
8. ΠΡΠ΄ΠΆΠ΅Ρ
ΠΠ΄Π΅ΡΡ Π²Ρ Π΄ΠΎΠ»ΠΆΠ½Ρ ΡΠΎΠΏΠΎΡΡΠ°Π²ΠΈΡΡ ΠΎΠΆΠΈΠ΄Π°Π½ΠΈΡ ΠΊΠ»ΠΈΠ΅Π½ΡΠ° Ρ Π²ΠΎΠ·ΠΌΠΎΠΆΠ½ΠΎΡΡΡΠΌΠΈ Π²Π°ΡΠ΅ΠΉ ΠΊΠΎΠΌΠ°Π½Π΄Ρ (ΠΈ ΡΠΎΠΎΠ±ΡΠΈΡΡ Π²Π°ΡΠ΅ΠΉ ΠΊΠΎΠΌΠ°Π½Π΄Π΅, ΡΠΊΠΎΠ»ΡΠΊΠΎ ΠΊΠ»ΠΈΠ΅Π½Ρ Π΄ΠΎΠ»ΠΆΠ΅Π½ ΠΏΠΎΡΡΠ°ΡΠΈΡΡ). ΠΠΎΠ³Π΄Π° ΠΊΡΠ΅Π°ΡΠΈΠ²Π½ΡΠΉ Π΄ΠΈΠ·Π°ΠΉΠ½Π΅Ρ ΠΏΠΎΠ»ΡΡΠ°Π΅Ρ ΠΏΠΎΠ»Π½ΡΡ ΡΠ²ΠΎΠ±ΠΎΠ΄Ρ Π΄Π΅ΠΉΡΡΠ²ΠΈΠΉ Π² Procreate ΠΈ Π½Π΅ ΠΈΠΌΠ΅Π΅Ρ Π±ΡΠ΄ΠΆΠ΅ΡΠ°, Π²ΡΠ΅ ΠΌΠΎΠΆΠ΅Ρ Π±ΡΡΡΡΠΎ Π²ΡΠΉΡΠΈ ΠΈΠ·-ΠΏΠΎΠ΄ ΠΊΠΎΠ½ΡΡΠΎΠ»Ρ.
Π Π±ΡΠ΄ΠΆΠ΅ΡΠ΅ ΡΠΊΠ°Π·Π°Π½Ρ ΡΠΈΠ½Π°Π½ΡΠΎΠ²ΡΠ΅ ΡΠ΅ΡΡΡΡΡ, Π½Π΅ΠΎΠ±Ρ ΠΎΠ΄ΠΈΠΌΡΠ΅ Π΄Π»Ρ Π·Π°Π²Π΅ΡΡΠ΅Π½ΠΈΡ ΠΏΡΠΎΠ΅ΠΊΡΠ°. ΠΠ°ΠΆΠ΄ΠΎΠΌΡ ΠΊΡΠΈΡΠ΅ΡΠΈΡ ΠΏΡΠΎΠ΅ΠΊΡΠ° Π±ΡΠ΄Π΅Ρ Π½Π°Π·Π½Π°ΡΠ΅Π½Π° ΡΡΠΎΠΈΠΌΠΎΡΡΡ Π² Π±ΡΠ΄ΠΆΠ΅ΡΠ΅. Π‘ΠΎΠ·Π΄Π°Π½ΠΈΠ΅ Π±ΡΠ΄ΠΆΠ΅ΡΠ° ΠΏΡΠΎΠ΅ΠΊΡΠ° Π²Π»Π΅ΡΠ΅Ρ Π·Π° ΡΠΎΠ±ΠΎΠΉ ΡΠΎΡΠΌΠ°Π»ΡΠ½ΠΎΠ΅ Π²ΡΠ΄Π΅Π»Π΅Π½ΠΈΠ΅ ΡΠΈΠ½Π°Π½ΡΠΎΠ²ΡΡ ΡΠ΅ΡΡΡΡΠΎΠ² Π΄Π»Ρ ΠΏΡΠΎΠ΅ΠΊΡΠ°. ΠΡΠΎ Π½Π°ΡΠΈΠ½Π°Π΅ΡΡΡ Ρ ΠΏΡΠΈΠ½ΡΡΠΈΡ ΡΠ΅ΡΠ΅Π½ΠΈΡ ΠΎ ΠΌΠ΅ΡΠΎΠ΄Π΅ ΠΎΡΠ΅Π½ΠΊΠΈ Π·Π°ΡΡΠ°Ρ, ΠΎΠΏΡΠ΅Π΄Π΅Π»Π΅Π½ΠΈΡ Π²ΠΎΠ·Π΄Π΅ΠΉΡΡΠ²ΠΈΡ ΠΈ ΡΠΎΡΡΠ°Π²Π»Π΅Π½ΠΈΡ ΠΎΡΡΠ΅ΡΠ° ΠΎΠ± ΠΎΡΠ΅Π½ΠΊΠ΅.
Β
9. ΠΠ°ΠΊΠΎΠ² ΠΎΠ±ΡΠ΅ΠΌ ΠΏΡΠΎΠ΅ΠΊΡΠ½ΠΎΠ³ΠΎ ΠΏΡΠ΅Π΄Π»ΠΎΠΆΠ΅Π½ΠΈΡ?
ΠΡΠ΅ ΡΡΠΎ Π·Π°Π²Π΅ΡΡΠ°Π΅ΡΡΡ ΠΏΡΠΎΠ΅ΠΊΡΠ½ΡΠΌ ΠΏΡΠ΅Π΄Π»ΠΎΠΆΠ΅Π½ΠΈΠ΅ΠΌ, Π² ΠΊΠΎΡΠΎΡΠΎΠΌ ΠΎΠ±ΡΡΡΠ½ΡΠ΅ΡΡΡ, ΠΏΠΎΡΠ΅ΠΌΡ ΠΏΡΠΎΠ΅ΠΊΡ Π΄ΠΎΠ»ΠΆΠ΅Π½ Π±ΡΡΡ ΡΠ΅Π°Π»ΠΈΠ·ΠΎΠ²Π°Π½ ΠΈ ΠΊΠ°ΠΊΠΈΠ΅ Π²ΡΠ³ΠΎΠ΄Ρ ΠΎΠ½ ΠΏΡΠΈΠ½Π΅ΡΠ΅Ρ. ΠΡΠ΅Π΄ΡΠ΄ΡΡΠΈΠ΅ ΡΠ°Π³ΠΈ ΡΠ΅Π·ΡΠΌΠΈΡΡΡΡΡΡ ΡΠΊΠ°Π·Π°Π½ΠΈΠ΅ΠΌ ΡΠ΅Π»ΠΈ ΠΏΡΠΎΠ΅ΠΊΡΠ° ΠΈ ΠΊΡΠ°ΡΠΊΠΈΠΌ ΠΎΠΏΠΈΡΠ°Π½ΠΈΠ΅ΠΌ ΠΏΡΠΎΠ±Π»Π΅ΠΌΡ, ΠΊΠΎΡΠΎΡΡΡ ΠΎΠ½ ΡΠ΅ΡΠ°Π΅Ρ. ΠΠ°ΡΠ΅ΠΌ ΠΎΠΏΡΠ΅Π΄Π΅Π»ΠΈΡΠ΅ ΡΠ΅Π»ΠΈ ΠΏΡΠΎΠ΅ΠΊΡΠ° ΠΈ ΠΌΠ΅ΡΠΎΠ΄, ΠΊΠΎΡΠΎΡΡΠΉ Π±ΡΠ΄Π΅Ρ ΠΈΡΠΏΠΎΠ»ΡΠ·ΠΎΠ²Π°ΡΡΡΡ Π΄Π»Ρ ΠΈΡ Π΄ΠΎΡΡΠΈΠΆΠ΅Π½ΠΈΡ.
Β
ΠΠ°ΠΊΠ»ΡΡΠ΅Π½ΠΈΠ΅
ΠΠ°ΡΠ°Π΄ΠΈΠ³ΠΌΠ° ΡΠΏΡΠ°Π²Π»Π΅Π½ΠΈΡ ΠΏΡΠΎΠ΅ΠΊΡΠ°ΠΌΠΈ ΠΏΡΠ΅Π΄ΡΡΠ°Π²Π»ΡΠ΅Ρ ΡΠΎΠ±ΠΎΠΉ Π·Π°ΠΏΡΡΠ°Π½Π½ΡΡ ΠΏΠ°ΡΡΠΈΠ½Ρ ΠΏΡΠΎΡΠΈΠ²ΠΎΡΠ΅ΡΠΈΠΉ. ΠΠ°ΠΆΠ΄ΡΠΉ ΠΏΡΠΎΠ΅ΠΊΡ, Π²ΠΎΠ·Π½ΠΈΠΊΠ°ΡΡΠΈΠΉ Π² ΠΏΡΠΎΡΠ΅ΡΡΠ΅ ΡΠ°Π·ΡΠ°Π±ΠΎΡΠΊΠΈ ΠΏΡΠΎΠ΅ΠΊΡΠ°, ΡΠ½ΠΈΠΊΠ°Π»Π΅Π½, ΠΈΠΌΠ΅Π΅Ρ ΡΠ²ΠΎΠΉ ΡΠΎΠ±ΡΡΠ²Π΅Π½Π½ΡΠΉ Π½Π°Π±ΠΎΡ Ρ
Π°ΡΠ°ΠΊΡΠ΅ΡΠΈΡΡΠΈΠΊ ΠΈ ΠΏΡΠΎΠ±Π»Π΅ΠΌ, Π½ΠΎ Π²ΡΠ΅Ρ
ΠΈΡ
ΠΎΠ±ΡΠ΅Π΄ΠΈΠ½ΡΠ΅Ρ ΠΎΠ΄Π½ΠΎ: Π΄ΠΈΠ·Π°ΠΉΠ½ ΠΏΡΠΎΠ΅ΠΊΡΠ°.
ΠΠΈΠ·Π°ΠΉΠ½ ΠΏΡΠΎΠ΅ΠΊΡΠ° ΡΠ²Π»ΡΠ΅ΡΡΡ Π½Π°ΡΡΠΎΠ»ΡΠΊΠΎ Π²Π°ΠΆΠ½ΡΠΌ ΠΊΠΎΠΌΠΏΠΎΠ½Π΅Π½ΡΠΎΠΌ ΠΏΡΠΎΠ΅ΠΊΡΠ°, ΡΡΠΎ ΠΏΡΠΎΡΠ΅ΡΡ ΡΠ°Π·ΡΠ°Π±ΠΎΡΠΊΠΈ ΠΏΡΠΎΠ΅ΠΊΡΠ° Π±ΡΠ» Π±Ρ Π½Π΅Π²ΠΎΠ·ΠΌΠΎΠΆΠ΅Π½ Π±Π΅Π· Π½Π΅Π³ΠΎ. ΠΠΎΠ»ΡΡΠΈΠ½ΡΡΠ²ΠΎ ΠΌΠ΅Π½Π΅Π΄ΠΆΠ΅ΡΠΎΠ² ΠΏΡΠΎΠ΅ΠΊΡΠΎΠ² Π² Π±ΠΈΠ·Π½Π΅ΡΠ΅ ΡΠΏΠ΅ΡΠ°Ρ Ρ ΠΏΡΠΎΡΠ΅ΡΡΠΎΠΌ ΠΏΡΠΎΠ΅ΠΊΡΠΈΡΠΎΠ²Π°Π½ΠΈΡ, Π½Π΅ ΠΏΠΎΠ΄ΠΎΠ·ΡΠ΅Π²Π°Ρ, ΡΡΠΎ ΠΈΠ·-Π·Π° Π½Π΅ΠΏΡΠ°Π²ΠΈΠ»ΡΠ½ΠΎΠ³ΠΎ Π²ΡΠΏΠΎΠ»Π½Π΅Π½ΠΈΡ ΡΡΠ°ΠΏΠ° ΠΏΡΠΎΠ΅ΠΊΡΠΈΡΠΎΠ²Π°Π½ΠΈΡ ΠΈΡ ΠΏΡΠΎΠ΅ΠΊΡ ΡΡΠ°Π½Π΅Ρ ΠΏΠΎΠ»Π½ΠΎΠΉ ΠΊΠ°ΡΠ°ΡΡΡΠΎΡΠΎΠΉ Π±Π΅Π· Π²ΠΎΠ·ΠΌΠΎΠΆΠ½ΠΎΡΡΠΈ Π²ΠΎΡΡΡΠ°Π½ΠΎΠ²Π»Π΅Π½ΠΈΡ.
Π£ΡΠΏΠ΅Ρ Π»ΡΠ±ΠΎΠ³ΠΎ ΠΏΡΠΎΠ΅ΠΊΡΠ° Π·Π°Π²ΠΈΡΠΈΡ ΠΎΡ ΡΡΡΠ΅ΠΊΡΠΈΠ²Π½ΠΎΠ³ΠΎ ΡΠΏΡΠ°Π²Π»Π΅Π½ΠΈΡ. Π‘ΠΈΡΡΠ°ΡΠΈΡ ΠΌΠΎΠΆΠ΅Ρ Π±ΡΡΡΡΠΎ Π²ΡΠΉΡΠΈ ΠΈΠ·-ΠΏΠΎΠ΄ ΠΊΠΎΠ½ΡΡΠΎΠ»Ρ, Π΅ΡΠ»ΠΈ Ρ Π²Π°Ρ Π½Π΅Ρ ΠΏΠ»Π°Π½Π°. ΠΠΈΠΊΡΠΎ Π½Π΅ Ρ ΠΎΡΠ΅Ρ Π±ΡΡΡ ΠΎΠ»Π΅Π½Π΅ΠΌ Π² ΡΠ²Π΅ΡΠ΅ ΡΠ°Ρ, ΠΊΠΎΠ³Π΄Π° ΠΊΠ»ΠΈΠ΅Π½Ρ ΠΏΡΠΎΡΠΈΡ Β«ΡΡ Π±ΡΠΌΠ°Π³Ρ, ΠΊΠΎΡΠΎΡΡΡ Π²Ρ ΠΎΠ±Π΅ΡΠ°Π»ΠΈΒ», ΠΊΠΎΡΠΎΡΠ°Ρ Π·Π°ΡΠ΅ΡΡΠ»Π°ΡΡ ΡΡΠ΅Π΄ΠΈ Π³ΠΎΡΡ Π΄ΡΡΠ³ΠΈΡ ΠΎΠ±ΡΠ·Π°Π½Π½ΠΎΡΡΠ΅ΠΉ. ΠΠΈΠ·Π°ΠΉΠ½-ΠΏΡΠΎΠ΅ΠΊΡΡ ΠΎΡΠΎΠ±Π΅Π½Π½ΠΎ Π±ΡΡΠ½Ρ, ΠΏΠΎΡΠΎΠΌΡ ΡΡΠΎ ΠΎΠ½ΠΈ ΠΎΠ±ΡΠ΅Π΄ΠΈΠ½ΡΡΡ ΡΠ°Π·Π½ΠΎΡΠΎΠ΄Π½ΡΡ Π³ΡΡΠΏΠΏΡ Π»ΡΠ΄Π΅ΠΉ Ρ ΡΠ°Π·Π»ΠΈΡΠ½ΡΠΌΠΈ Π½Π°Π²ΡΠΊΠ°ΠΌΠΈ ΠΈ ΠΊΠ²Π°Π»ΠΈΡΠΈΠΊΠ°ΡΠΈΠ΅ΠΉ.
Β
ΠΠΎΠΌΠΏΠ°Π½ΠΈΡ ΠΏΡΠΎΠ²ΠΎΠ΄ΠΈΡ ΠΊΠ°ΠΊ ΡΡΠ΅Π±Π½ΡΠ΅ ΡΠ΅ΠΌΠΈΠ½Π°ΡΡ ΠΏΠΎΠ΄ ΡΡΠΊΠΎΠ²ΠΎΠ΄ΡΡΠ²ΠΎΠΌ ΠΈΠ½ΡΡΡΡΠΊΡΠΎΡΠ° Π² ΠΊΠ»Π°ΡΡΠ΅, ΡΠ°ΠΊ ΠΈ ΡΠ΅Π°Π½ΡΡ ΠΎΠ½Π»Π°ΠΉΠ½-ΠΎΠ±ΡΡΠ΅Π½ΠΈΡ ΠΏΠΎΠ΄ ΡΡΠΊΠΎΠ²ΠΎΠ΄ΡΡΠ²ΠΎΠΌ ΠΈΠ½ΡΡΡΡΠΊΡΠΎΡΠ° Π΄Π»Ρ ΡΡΠ°ΡΠΈΡ ΡΡ ΡΠΎ Π²ΡΠ΅Ρ ΠΊΠΎΠ½ΡΠΎΠ² Π‘ΠΎΠ΅Π΄ΠΈΠ½Π΅Π½Π½ΡΡ Π¨ΡΠ°ΡΠΎΠ² ΠΈ Π²ΡΠ΅Π³ΠΎ ΠΌΠΈΡΠ°.
ΠΡ ΡΠ°ΠΊΠΆΠ΅ ΠΏΡΠΎΠ²ΠΎΠ΄ΠΈΠΌΒ ΠΊΠΎΡΠΏΠΎΡΠ°ΡΠΈΠ²Π½ΠΎΠ΅ ΠΎΠ±ΡΡΠ΅Π½ΠΈΠ΅ Π΄Π»Ρ ΠΏΠΎΠ²ΡΡΠ΅Π½ΠΈΡ ΠΊΠ²Π°Π»ΠΈΡΠΈΠΊΠ°ΡΠΈΠΈ ΡΠΎΡΡΡΠ΄Π½ΠΈΠΊΠΎΠ² ΠΏΡΠ΅Π΄ΠΏΡΠΈΡΡΠΈΡ.
Β
ΠΡΠΎΡΠ΅ΡΡΠΈΠΎΠ½Π°Π»ΡΠ½ΠΎΠ΅ ΡΠ΅ΡΡΠΈΡΠΈΠΊΠ°ΡΠΈΠΎΠ½Π½ΠΎΠ΅ ΠΎΠ±ΡΡΠ΅Π½ΠΈΠ΅:
— Π‘Π΅ΡΡΠΈΡΠΈΠΊΠ°ΡΠΈΠΎΠ½Π½ΠΎΠ΅ ΠΎΠ±ΡΡΠ΅Π½ΠΈΠ΅ PMP
— Π‘Π΅ΡΡΠΈΡΠΈΠΊΠ°ΡΠΈΠΎΠ½Π½ΠΎΠ΅ ΠΎΠ±ΡΡΠ΅Π½ΠΈΠ΅ CAPM
Β
ΠΠ±ΡΡΠ΅Π½ΠΈΠ΅ ΡΠΏΡΠ°Π²Π»Π΅Π½ΠΈΡ ΠΊΠ°ΡΠ΅ΡΡΠ²ΠΎΠΌ:
— Π‘Π΅ΡΡΠΈΡΠΈΠΊΠ°ΡΠΈΠΎΠ½Π½ΡΠ΅ ΡΡΠ΅Π±Π½ΡΠ΅ ΠΊΡΡΡΡ «ΠΠ΅Π»ΡΠΎΠ³ΠΎ ΠΏΠΎΡΡΠ° ΠΏΠΎ Π±Π΅ΡΠ΅ΠΆΠ»ΠΈΠ²ΠΎΠΌΡ ΠΏΡΠΎΠΈΠ·Π²ΠΎΠ΄ΡΡΠ²Ρ ΠΈ ΡΠ΅ΡΡΠΈ ΡΠΈΠ³ΠΌ» (LSSYB)
— Π‘Π΅ΡΡΠΈΡΠΈΠΊΠ°ΡΠΈΠΎΠ½Π½ΡΠ΅ ΡΡΠ΅Π±Π½ΡΠ΅ ΠΊΡΡΡΡ ΠΏΠΎ «Π·Π΅Π»Π΅Π½ΠΎΠΌΡ ΠΏΠΎΡΡΡ ΠΏΠΎ Π±Π΅ΡΠ΅ΠΆΠ»ΠΈΠ²ΠΎΠΌΡ ΠΏΡΠΎΠΈΠ·Π²ΠΎΠ΄ΡΡΠ²Ρ ΠΈ ΡΠ΅ΡΡΠΈ ΡΠΈΠ³ΠΌ» (LSSGB)
— Π‘Π΅ΡΡΠΈΡΠΈΠΊΠ°ΡΠΈΠΎΠ½Π½ΡΠ΅ ΡΡΠ΅Π±Π½ΡΠ΅ ΠΊΡΡΡΡ ΠΏΠΎ «ΡΠ΅ΡΠ½ΠΎΠΌΡ ΠΏΠΎΡΡΡ ΠΏΠΎ Π±Π΅ΡΠ΅ΠΆΠ»ΠΈΠ²ΠΎΠΌΡ ΠΏΡΠΎΠΈΠ·Π²ΠΎΠ΄ΡΡΠ²Ρ ΠΈ ΡΠ΅ΡΡΠΈ ΡΠΈΠ³ΠΌ» (LSSBB)
Β
Π‘ΠΊΡΠ°ΠΌ-ΡΡΠ΅Π½ΠΈΠ½Π³:
Β β Π‘Π΅ΡΡΠΈΡΠΈΠΊΠ°ΡΠΈΠΎΠ½Π½ΡΠ΅ ΡΡΠ΅Π±Π½ΡΠ΅ ΠΊΡΡΡΡ CSM (Certified ScrumMaster)
Β
Agile Training:
Β β Π‘Π΅ΡΡΠΈΡΠΈΠΊΠ°ΡΠΈΠΎΠ½Π½ΡΠ΅ ΡΡΠ΅Π±Π½ΡΠ΅ ΠΊΡΡΡΡ PMI-ACP (Agile Certified Professional)
Β
ΠΠ±ΡΡΠ΅Π½ΠΈΠ΅ DevOps:
Β β Π‘Π΅ΡΡΠΈΡΠΈΠΊΠ°ΡΠΈΠΎΠ½Π½ΡΠ΅ ΡΡΠ΅Π±Π½ΡΠ΅ ΠΊΡΡΡΡ DevOps
Β
ΠΠ±ΡΡΠ΅Π½ΠΈΠ΅ Π±ΠΈΠ·Π½Π΅Ρ-Π°Π½Π°Π»ΠΈΠ·Ρ ΠΎΡ iCert Global:
Β β Π‘Π΅ΡΡΠΈΡΠΈΠΊΠ°ΡΠΈΠΎΠ½Π½ΡΠ΅ ΡΡΠ΅Π±Π½ΡΠ΅ ΠΊΡΡΡΡ ECBA (ΡΠ΅ΡΡΠΈΡΠΈΠΊΠ°Ρ Π΄Π»Ρ Π²Ρ ΠΎΠ΄Π° Π² Π±ΠΈΠ·Π½Π΅Ρ-Π°Π½Π°Π»ΠΈΠ·)
Β β CCBA ( Π‘Π΅ΡΡΠΈΡΠΈΠΊΠ°Ρ ΡΠΏΠΎΡΠΎΠ±Π½ΠΎΡΡΠΈ Π² Π±ΠΈΠ·Π½Π΅Ρ-Π°Π½Π°Π»ΠΈΠ·Π΅) Π‘Π΅ΡΡΠΈΡΠΈΠΊΠ°ΡΠΈΡ Π£ΡΠ΅Π±Π½ΡΠ΅ ΠΊΡΡΡΡ
Β β CBAP (Certified Business Analysis Professional) Π‘Π΅ΡΡΠΈΡΠΈΠΊΠ°ΡΠΈΠΎΠ½Π½ΡΠ΅ ΡΡΠ΅Π±Π½ΡΠ΅ ΠΊΡΡΡΡ
Β
Π‘Π²ΡΠΆΠΈΡΠ΅ΡΡ Ρ Π½Π°ΠΌΠΈ:
Β β Π‘Π»Π΅Π΄ΠΈΡΠ΅ Π·Π° Π½Π°ΠΌΠΈ Π½Π° Linkedin
—Β ΠΡΠ°Π²ΠΈΡΡΡ Π½Π°ΠΌ Π½Π° Facebook
—Β ΠΠΎΠ΄ΠΏΠΈΡΠΈΡΠ΅ΡΡ Π½Π° Π½Π°Ρ Π² InstagramΒ
— ΠΠΎΠ΄ΠΏΠΈΡΠΈΡΠ΅ΡΡ Π½Π° Π½Π°Ρ Π² TwitterΒ Β
— ΠΠΎΠ΄ΠΏΠΈΡΠΈΡΠ΅ΡΡ Π½Π° Π½Π°Ρ Π² Pinterest
— ΠΠΎΠ΄ΠΏΠΈΡΠΈΡΠ΅ΡΡ Π½Π° Π½Π°Ρ ΠΊΠ°Π½Π°Π» YouTube
Β 9000 5
ΠΠΎΡΠ΅ΡΠΈΡΠ΅ Π½Π°Ρ ΠΏΠΎ Π°Π΄ΡΠ΅ΡΡΒ https://www.
icertglobal.com/ Β Π΄Π»Ρ ΠΏΠΎΠ»ΡΡΠ΅Π½ΠΈΡ Π΄ΠΎΠΏΠΎΠ»Π½ΠΈΡΠ΅Π»ΡΠ½ΠΎΠΉ ΠΈΠ½ΡΠΎΡΠΌΠ°ΡΠΈΠΈ ΠΎ Π½Π°ΡΠΈΡ
ΠΊΡΡΡΠ°Ρ
ΠΎΠ±ΡΡΠ΅Π½ΠΈΡ ΠΏΡΠΎΡΠ΅ΡΡΠΈΠΎΠ½Π°Π»ΡΠ½ΠΎΠΉ ΡΠ΅ΡΡΠΈΡΠΈΠΊΠ°ΡΠΈΠΈ ΠΈΠ»ΠΈ ΠΏΠΎΠ·Π²ΠΎΠ½ΠΈΡΠ΅ ΡΠ΅ΠΉΡΠ°Ρ! ΠΏΠΎ ΡΠ΅Π»Π΅ΡΠΎΠ½Ρ +1-713-287-1187 / +1-713-287-1214 ΠΈΠ»ΠΈ ΠΏΠΎ ΡΠ»Π΅ΠΊΡΡΠΎΠ½Π½ΠΎΠΉ ΠΏΠΎΡΡΠ΅ info {at} icertglobal {dot} com.
Π‘Π²ΡΠΆΠΈΡΠ΅ΡΡ Ρ Π½Π°ΠΌΠΈ, ΡΡΠΎΠ±Ρ ΠΏΠΎΠ»ΡΡΠΈΡΡ Π΄ΠΎΠΏΠΎΠ»Π½ΠΈΡΠ΅Π»ΡΠ½ΡΡ ΠΈΠ½ΡΠΎΡΠΌΠ°ΡΠΈΡ ΠΎ Π½Π°ΡΠΈΡ ΠΊΡΡΡΠ°Ρ ΠΏΡΠΎΡΠ΅ΡΡΠΈΠΎΠ½Π°Π»ΡΠ½ΠΎΠΉ ΡΠ΅ΡΡΠΈΡΠΈΠΊΠ°ΡΠΈΠΈ, ΠΊΠΎΡΠΎΡΡΠ΅ ΠΏΠΎΠΌΠΎΠ³ΡΡ Π²Π°ΠΌ ΡΡΠΊΠΎΡΠΈΡΡ Π²Π°ΡΡ ΠΊΠ°ΡΡΠ΅ΡΡ. ΠΠ°ΠΉΡΠ΅ Π½Π°ΠΌ Π·Π½Π°ΡΡ Π²Π°ΡΠΈ ΠΌΡΡΠ»ΠΈ Π² ΡΠ°Π·Π΄Π΅Π»Π΅ Β«ΠΠΎΠΌΠΌΠ΅Π½ΡΠ°ΡΠΈΠΈΒ» Π½ΠΈΠΆΠ΅. Π‘ΠΏΠ°ΡΠΈΠ±ΠΎ.
Β
ΠΡΠ°ΠΏ ΠΏΡΠΎΠ΅ΠΊΡΠΈΡΠΎΠ²Π°Π½ΠΈΡ | Π£ΠΏΡΠ°Π²Π»Π΅Π½ΠΈΠ΅ ΠΎΠ±ΡΠ΅ΠΊΡΠ°ΠΌΠΈ
ΠΡΠ΅Π΄ΡΠ΄ΡΡΠΈΠΉ | ΠΠ΅ΡΠ½ΡΡΡΡΡ ΠΊ ΠΎΠ±Π·ΠΎΡΡ ΠΏΡΠΎΡΠ΅ΡΡΠ° ΠΏΡΠΎΠ΅ΠΊΡΠΈΡΠΎΠ²Π°Π½ΠΈΡ ΠΎΠ±ΡΠ΅ΠΊΡΠΎΠ² | ΠΠ°Π»Π΅Π΅
ΠΠ°ΠΏΡΠΎΡΠΈΡΡ ΠΏΡΠΎΠ΅ΠΊΡ Bronco.
ΠΠ΅ΡΠ²Π°Ρ ΡΠ°Π·Π° Π±ΡΠ΄ΠΆΠ΅ΡΠ° ΡΠ²ΡΠ·Π°Π½Π° Ρ ΠΏΡΠΎΠ³ΡΠ°ΠΌΠΌΠΈΡΠΎΠ²Π°Π½ΠΈΠ΅ΠΌ, ΡΡ Π΅ΠΌΠ°ΡΠΈΡΠ΅ΡΠΊΠΈΠΌ ΠΏΡΠΎΠ΅ΠΊΡΠΈΡΠΎΠ²Π°Π½ΠΈΠ΅ΠΌ, ΠΏΡΠΎΠ΅ΠΊΡΠ½ΠΎΠΉ ΠΈ ΡΡΡΠΎΠΈΡΠ΅Π»ΡΠ½ΠΎΠΉ Π΄ΠΎΠΊΡΠΌΠ΅Π½ΡΠ°ΡΠΈΠ΅ΠΉ. ΠΡΠΎ ΠΎΠ±ΡΠ·Π°ΡΠ΅Π»ΡΠ½ΡΠΉ ΡΠ°Π³ ΠΏΠ΅ΡΠ΅Π΄ Π½Π°ΡΠ°Π»ΠΎΠΌ ΡΡΠ°ΠΏΠ° ΡΡΡΠΎΠΈΡΠ΅Π»ΡΡΡΠ²Π°.
ΠΡΠ°ΠΏ ΠΏΡΠΎΠ΅ΠΊΡΠΈΡΠΎΠ²Π°Π½ΠΈΡ Π½Π°ΡΠΈΠ½Π°Π΅ΡΡΡ Ρ ΡΡΠ²Π΅ΡΠΆΠ΄Π΅Π½ΠΈΡ Π±ΡΠ΄ΠΆΠ΅ΡΠ° ΠΏΡΠΎΠ΅ΠΊΡΠ°, ΠΊΠΎΡΠΎΡΡΠΉ Π²ΠΊΠ»ΡΡΠ°Π΅Ρ ΡΠ»Π΅Π΄ΡΡΡΠ΅Π΅
- ΠΏΡΠΎΠ΅ΠΊΡΠ½Π°Ρ ΠΈ ΡΠ²ΡΠ·Π°Π½Π½Π°Ρ Ρ Π½Π΅ΠΉ Π΄ΠΎΠΊΡΠΌΠ΅Π½ΡΠ°ΡΠΈΡ
- ΠΏΡΠΎΡΠ΅ΡΡΠΈΠΎΠ½Π°Π»ΡΠ½ΠΎΠ΅ Π²ΡΠ΅ΠΌΡ ΡΡΠΊΠΎΠ²ΠΎΠ΄ΠΈΡΠ΅Π»Ρ ΠΏΡΠΎΠ΅ΠΊΡΠ°, ΠΏΡΠΎΠ΅ΠΊΡΠΈΡΠΎΠ²ΡΠΈΠΊΠ° ΠΈ ΠΏΠΎΡΠ΅Π½ΡΠΈΠ°Π»ΡΠ½ΡΡ ΠΏΠΎΠ΄ΡΡΠ΄ΡΠΈΠΊΠΎΠ²
- Π΄ΠΈΠ·Π°ΠΉΠ½ Π½Π΅ΠΏΡΠ΅Π΄Π²ΠΈΠ΄Π΅Π½Π½ΡΡ
ΠΎΠ±ΡΡΠΎΡΡΠ΅Π»ΡΡΡΠ².

Π ΠΊΠΎΠ½ΡΠ΅ ΡΡΠ°ΠΏΠ° ΠΏΡΠΎΠ΅ΠΊΡΠΈΡΠΎΠ²Π°Π½ΠΈΡ Π±ΡΠ΄ΠΆΠ΅Ρ ΡΡΡΠΎΠΈΡΠ΅Π»ΡΡΡΠ²Π° Π³ΠΎΡΠΎΠ² ΠΊ ΡΡΠ²Π΅ΡΠΆΠ΄Π΅Π½ΠΈΡ, ΠΈ ΠΏΡΠΎΠ΅ΠΊΡ Π³ΠΎΡΠΎΠ² ΠΊ ΡΠ΅Π°Π»ΠΈΠ·Π°ΡΠΈΠΈ. Π Π΅Π·ΡΠ»ΡΡΠ°ΡΠ°ΠΌΠΈ ΡΡΠ°ΠΏΠ° ΠΏΡΠΎΠ΅ΠΊΡΠΈΡΠΎΠ²Π°Π½ΠΈΡ ΡΠ²Π»ΡΡΡΡΡ ΠΏΡΠΎΠ΅ΠΊΡΠ½Π°Ρ Π΄ΠΎΠΊΡΠΌΠ΅Π½ΡΠ°ΡΠΈΡ, ΠΏΡΠΎΠ΅ΠΊΡΠ½ΠΎ-ΡΠΌΠ΅ΡΠ½Π°Ρ Π΄ΠΎΠΊΡΠΌΠ΅Π½ΡΠ°ΡΠΈΡ ΠΈ ΠΏΡΠ΅Π΄Π²Π°ΡΠΈΡΠ΅Π»ΡΠ½ΡΠΉ ΠΏΠ°ΠΊΠ΅Ρ ΠΊΠΎΠ½ΡΡΠ°ΠΊΡΠ½ΠΎΠΉ Π΄ΠΎΠΊΡΠΌΠ΅Π½ΡΠ°ΡΠΈΠΈ. ΠΠΎΡΠ»Π΅ ΡΡΠ²Π΅ΡΠΆΠ΄Π΅Π½ΠΈΡ Π±ΡΠ΄ΠΆΠ΅ΡΠ° ΡΡΡΠΎΠΈΡΠ΅Π»ΡΡΡΠ²Π° Π½Π°ΡΠΈΠ½Π°Π΅ΡΡΡ ΡΡΠ°ΠΏ ΡΡΡΠΎΠΈΡΠ΅Π»ΡΡΡΠ²Π°.
ΠΡΠ°ΠΏ ΠΏΡΠΎΠ΅ΠΊΡΠΈΡΠΎΠ²Π°Π½ΠΈΡ ΡΠΎΡΡΠΎΠΈΡ ΠΈΠ· ΡΠ΅ΡΡΡΠ΅Ρ ΠΏΠΎΠ΄ΡΡΠ°ΠΏΠΎΠ²:
- ΠΡΠ°ΠΏ ΠΏΡΠΎΠ³ΡΠ°ΠΌΠΌΠΈΡΠΎΠ²Π°Π½ΠΈΡ
- ΠΡΠ°ΠΏ ΠΏΡΠΎΠ΅ΠΊΡΠΈΡΠΎΠ²Π°Π½ΠΈΡ ΡΡ Π΅ΠΌΡ
- ΠΡΠ°ΠΏ ΡΠ°Π·ΡΠ°Π±ΠΎΡΠΊΠΈ Π΄ΠΈΠ·Π°ΠΉΠ½Π°
- ΠΡΠ°ΠΏ ΡΡΡΠΎΠΈΡΠ΅Π»ΡΠ½ΠΎΠΉ Π΄ΠΎΠΊΡΠΌΠ΅Π½ΡΠ°ΡΠΈΠΈ
ΠΠ±ΡΡΡ ΡΠ΅ΡΠΌΠΈΠ½ΠΎΠ»ΠΎΠ³ΠΈΡ ΠΈ Π΅Π΅ ΠΎΠΏΡΠ΅Π΄Π΅Π»Π΅Π½ΠΈΡ ΠΌΠΎΠΆΠ½ΠΎ Π½Π°ΠΉΡΠΈ Π² ΡΠ°Π·Π΄Π΅Π»Π΅ Β«ΠΠΏΡΠ΅Π΄Π΅Π»Π΅Π½ΠΈΡ ΡΠ΅ΡΠΌΠΈΠ½ΠΎΠ² ΡΠΏΡΠ°Π²Π»Π΅Π½ΠΈΡ ΠΏΡΠΎΠ΅ΠΊΡΠ°ΠΌΠΈΒ».
ΠΡΠ°ΠΏ ΠΏΡΠΎΠ³ΡΠ°ΠΌΠΌΠΈΡΠΎΠ²Π°Π½ΠΈΡΠΡΠ°ΠΏ ΠΏΡΠΎΠ³ΡΠ°ΠΌΠΌΠΈΡΠΎΠ²Π°Π½ΠΈΡ ΠΊΠ°ΡΠ°Π΅ΡΡΡ ΡΠ»Π΅Π΄ΡΡΡΠ΅Π³ΠΎ:
- ΠΡΠ΅Π½ΠΊΠ° ΡΠ΅Π°Π»ΠΈΡΡΠΈΡΠ½ΠΎΠΉ ΡΡΠΎΠΈΠΌΠΎΡΡΠΈ ΠΏΡΠΎΠ΅ΠΊΡΠ°.
- ΠΠΏΡΠ΅Π΄Π΅Π»Π΅Π½ΠΈΠ΅ ΡΡΠ΅Π±ΠΎΠ²Π°Π½ΠΈΠΉ ΠΊ Π·Π΄Π°Π½ΠΈΡ ΠΈ ΠΏΠΎΠ»ΡΠ·ΠΎΠ²Π°ΡΠ΅Π»ΡΠΌ.
- Π£ΡΡΠ°Π½ΠΎΠ²Π»Π΅Π½ΠΈΠ΅ ΠΎΠ±ΡΠ΅ΠΉ ΠΏΠ»ΠΎΡΠ°Π΄ΠΈ Π·Π°ΡΡΡΠΎΠΉΠΊΠΈ.
- Π£ΡΠΎΡΠ½Π΅Π½ΠΈΠ΅ ΠΎΠ±ΡΠ΅ΠΌΠ° ΡΠ°Π±ΠΎΡ.
ΠΡΠΎΠ³ΡΠ°ΠΌΠΌΠΈΡΠΎΠ²Π°Π½ΠΈΠ΅ Π²ΠΊΠ»ΡΡΠ°Π΅Ρ ΡΠ±ΠΎΡ ΠΈΠ½ΡΠΎΡΠΌΠ°ΡΠΈΠΈ ΠΎΡ ΠΏΡΠ΅Π΄ΠΏΠΎΠ»Π°Π³Π°Π΅ΠΌΡΡ
ΠΆΠΈΠ»ΡΡΠΎΠ² Π·Π΄Π°Π½ΠΈΡ ΠΈ Π³ΡΡΠΏΠΏ ΠΏΠΎΠ»ΡΠ·ΠΎΠ²Π°ΡΠ΅Π»Π΅ΠΉ ΠΏΠΎΡΡΠ΅Π΄ΡΡΠ²ΠΎΠΌ Π³ΡΡΠΏΠΏΠΎΠ²ΡΡ
ΠΈ ΠΈΠ½Π΄ΠΈΠ²ΠΈΠ΄ΡΠ°Π»ΡΠ½ΡΡ
ΠΎΠΏΡΠΎΡΠΎΠ².
ΠΡΠΎΠ³ΡΠ°ΠΌΠΌΠΈΡΡ ΠΈΡΡΠ»Π΅Π΄ΡΠ΅Ρ ΡΠ΅ΠΊΡΡΠΈΠ΅ ΠΈ ΠΏΡΠΎΠ³Π½ΠΎΠ·ΠΈΡΡΠ΅ΠΌΡΠ΅ ΠΏΠΎΡΡΠ΅Π±Π½ΠΎΡΡΠΈ Π² ΡΠ°ΠΊΠΈΡ
ΠΎΠ±Π»Π°ΡΡΡΡ
, ΠΊΠ°ΠΊ ΠΈΠ½ΡΠΎΡΠΌΠ°ΡΠΈΠΎΠ½Π½ΡΠ΅ ΠΈ ΡΡΠ΅Π±Π½ΡΠ΅ ΡΠ΅Ρ
Π½ΠΎΠ»ΠΎΠ³ΠΈΠΈ, Π°ΠΊΠ°Π΄Π΅ΠΌΠΈΡΠ΅ΡΠΊΠΈΠ΅ ΠΌΠ΅ΡΠΎΠ΄Ρ ΠΎΠ±ΡΡΠ΅Π½ΠΈΡ, ΠΊΠΎΠ½ΡΠΈΠ΄Π΅Π½ΡΠΈΠ°Π»ΡΠ½ΠΎΡΡΡ ΠΈ Π±Π΅Π·ΠΎΠΏΠ°ΡΠ½ΠΎΡΡΡ. Π Π΅Π·ΡΠ»ΡΡΠ°ΡΠΎΠΌ ΡΠ²Π»ΡΠ΅ΡΡΡ Π²ΡΠ΅ΡΡΠΎΡΠΎΠ½Π½Π΅Π΅ ΠΎΠΏΠΈΡΠ°Π½ΠΈΠ΅ Π½Π΅ΠΎΠ±Ρ
ΠΎΠ΄ΠΈΠΌΡΡ
ΠΊΠΎΠΌΠΏΠΎΠ½Π΅Π½ΡΠΎΠ² ΡΡΡΠΎΠΈΡΠ΅Π»ΡΠ½ΠΎΠ³ΠΎ ΠΏΡΠΎΠ΅ΠΊΡΠ°.
ΠΠ°ΡΡΠ°Π»ΠΎ Π²ΡΠ΅ΠΌΡ ΠΎΠΏΡΠ΅Π΄Π΅Π»ΠΈΡΡ Π²Π»ΠΈΡΠ½ΠΈΠ΅ Π½Π° ΡΡΡΠ΅ΡΡΠ²ΡΡΡΠΈΠ΅ ΠΎΠ±ΡΠ΅ΠΊΡΡ ΠΈΠ»ΠΈ ΠΏΠ»Π°Π½ΠΈΡΡΠ΅ΠΌΡΠ΅ ΠΏΡΠΎΠ΅ΠΊΡΡ, Π° ΡΠ°ΠΊΠΆΠ΅ ΠΏΠΎΡΡΠ΅Π±Π½ΠΎΡΡΡ Π² Π΄ΠΎΠΏΠΎΠ»Π½ΠΈΡΠ΅Π»ΡΠ½ΡΡ ΠΏΡΠΎΠ΅ΠΊΡΠ°Ρ , ΡΠ°ΠΊΠΈΡ ΠΊΠ°ΠΊ Π°Π²ΡΠΎΡΡΠΎΡΠ½ΠΊΠΈ ΠΈΠ»ΠΈ Π½ΠΎΠ²ΡΠ΅ ΠΊΠΎΠΌΠΌΡΠ½Π°Π»ΡΠ½ΡΠ΅ ΡΡΠ»ΡΠ³ΠΈ. ΠΠΏΡΠ΅Π΄Π΅Π»Π΅Π½Ρ ΡΡΡΠΎΠΈΡΠ΅Π»ΡΠ½ΡΠ΅ ΡΡΠ΅Π±ΠΎΠ²Π°Π½ΠΈΡ ΠΈΠ»ΠΈ ΠΎΠ³ΡΠ°Π½ΠΈΡΠ΅Π½ΠΈΡ ΡΡΠ°ΡΠ° ΠΠΈΡΠΈΠ³Π°Π½, Π²ΡΠ΅ Π²ΠΎΠΏΡΠΎΡΡ Π±Π΅Π·ΠΎΠΏΠ°ΡΠ½ΠΎΡΡΠΈ ΠΆΠΈΠ·Π½ΠΈ, ΠΏΠΎΠΆΠ°ΡΠ½ΠΎΠΉ Π±Π΅Π·ΠΎΠΏΠ°ΡΠ½ΠΎΡΡΠΈ, ΠΎΡ ΡΠ°Π½Ρ ΠΎΠΊΡΡΠΆΠ°ΡΡΠ΅ΠΉ ΡΡΠ΅Π΄Ρ ΠΈ Π±Π΅Π·Π±Π°ΡΡΠ΅ΡΠ½ΠΎΡΡΠΈ.
ΠΡΠΎΠ³ΡΠ°ΠΌΠΌΠ° ΠΏΡΠΎΠ΅ΠΊΡΠ°, ΠΊΠΎΠ½Π΅ΡΠ½ΡΠΉ ΡΠ΅Π·ΡΠ»ΡΡΠ°Ρ ΡΡΠ°ΠΏΠ° ΠΏΡΠΎΠ³ΡΠ°ΠΌΠΌΠΈΡΠΎΠ²Π°Π½ΠΈΡ, ΠΎΠΏΠΈΡΡΠ²Π°Π΅Ρ, ΠΊΠ°ΠΊ Π±ΡΠ΄Π΅Ρ Β«ΡΠ°Π±ΠΎΡΠ°ΡΡΒ» Π³ΠΎΡΠΎΠ²ΡΠΉ ΠΏΡΠΎΠ΅ΠΊΡ: ΠΊΠ°ΠΊ ΠΎΠ½ Π±ΡΠ΄Π΅Ρ ΡΡΠ½ΠΊΡΠΈΠΎΠ½ΠΈΡΠΎΠ²Π°ΡΡ Π΄Π»Ρ ΠΆΠΈΡΠ΅Π»Π΅ΠΉ Π·Π΄Π°Π½ΠΈΡ ΠΈ ΠΊΠ°ΠΊ ΠΎΠ½ Π±ΡΠ΄Π΅Ρ ΡΠΎΠΎΡΠ²Π΅ΡΡΡΠ²ΠΎΠ²Π°ΡΡ Π²ΡΠ΅ΠΌ ΡΡΠ΅Π±ΠΎΠ²Π°Π½ΠΈΡΠΌ ΠΏΡΠΎΠ΅ΠΊΡΠ°.
ΠΠ»ΠΎΠΊ-ΡΡ Π΅ΠΌΠ° ΡΡΠ°ΠΏΠ° ΠΏΡΠΎΠ³ΡΠ°ΠΌΠΌΠΈΡΠΎΠ²Π°Π½ΠΈΡ
ΠΡΠ°ΠΏ ΠΏΡΠΎΠ΅ΠΊΡΠΈΡΠΎΠ²Π°Π½ΠΈΡ ΡΡ Π΅ΠΌΡΠΡΠ°ΠΏ ΠΏΡΠΎΠ΅ΠΊΡΠΈΡΠΎΠ²Π°Π½ΠΈΡ ΡΡ Π΅ΠΌΡ ΠΊΠ°ΡΠ°Π΅ΡΡΡ:
- Π‘ΡΡΠΎΠΈΡΠ΅Π»ΡΠ½ΡΡ
ΡΠΈΡΡΠ΅ΠΌ (ΠΊΠΎΠ½ΡΡΡΡΠΊΡΠΈΠΎΠ½Π½ΡΡ
, ΠΌΠ΅Ρ
Π°Π½ΠΈΡΠ΅ΡΠΊΠΈΡ
, ΠΠΠΈΠ, Π²ΠΎΠ΄ΠΎΠΏΡΠΎΠ²ΠΎΠ΄Π½ΡΡ
ΠΈ ΡΠ»Π΅ΠΊΡΡΠΈΡΠ΅ΡΠΊΠΈΡ
).

- ΠΠ½ΡΡΡΠ΅Π½Π½ΡΡ ΠΈ Π²Π½Π΅ΡΠ½ΡΡ ΠΎΡΠ΄Π΅Π»ΠΊΠ°.
- Π‘ΡΡΠΎΠΈΡΠ΅Π»ΡΠ½Π°Ρ ΠΏΠ»ΠΎΡΠ°Π΄ΠΊΠ°.
Π¦Π΅Π»Ρ ΠΏΡΠΎΠ΅ΠΊΡΠΈΡΠΎΠ²Π°Π½ΠΈΡ ΡΡ Π΅ΠΌ ΡΠΎΡΡΠΎΠΈΡ Π² ΡΠΎΠΌ, ΡΡΠΎΠ±Ρ ΠΏΡΠ΅ΠΎΠ±ΡΠ°Π·ΠΎΠ²Π°ΡΡ ΠΏΡΠΎΠ³ΡΠ°ΠΌΠΌΡ ΠΏΡΠΎΠ΅ΠΊΡΠ° Π² ΡΠΈΠ·ΠΈΡΠ΅ΡΠΊΠΈΠ΅ ΡΠ΅ΡΡΠ΅ΠΆΠΈ ΠΏΡΠΎΡΡΡΠ°Π½ΡΡΠ²Π°. ΠΠ° ΡΡΠ°ΠΏΠ΅ ΡΡΠΊΠΈΠ·Π½ΠΎΠ³ΠΎ ΠΏΡΠΎΠ΅ΠΊΡΠΈΡΠΎΠ²Π°Π½ΠΈΡ ΠΊΠΎΠΌΠ°Π½Π΄Π° ΠΏΡΠΎΠ΅ΠΊΡΠ° ΠΎΠΏΡΠ΅Π΄Π΅Π»ΡΠ΅Ρ ΠΏΠ»ΠΎΡΠ°Π΄ΠΈ, ΡΠΈΠ·ΠΈΡΠ΅ΡΠΊΠΈΠ΅ ΡΡΠ΅Π±ΠΎΠ²Π°Π½ΠΈΡ ΠΈ Π²Π·Π°ΠΈΠΌΠΎΡΠ²ΡΠ·ΠΈ Π²ΡΠ΅Ρ Π½Π΅ΠΎΠ±Ρ ΠΎΠ΄ΠΈΠΌΡΡ ΠΏΡΠΎΡΡΡΠ°Π½ΡΡΠ² ΠΈ ΠΊΠΎΠΌΠΏΠΎΠ½Π΅Π½ΡΠΎΠ² Π·Π΄Π°Π½ΠΈΡ, ΠΏΠΎΠ΄ΡΠ²Π΅ΡΠΆΠ΄Π°Π΅Ρ ΠΈΠ»ΠΈ ΠΏΠ΅ΡΠ΅ΡΠΌΠ°ΡΡΠΈΠ²Π°Π΅Ρ ΠΎΠ±ΡΡΡ ΠΏΠ»ΠΎΡΠ°Π΄Ρ Π·Π΄Π°Π½ΠΈΡ, ΠΎΠ±ΡΠΈΠΉ Π±ΡΠ΄ΠΆΠ΅Ρ ΠΏΡΠΎΠ΅ΠΊΡΠ°, Π° ΡΠ°ΠΊΠΆΠ΅ Π³ΡΠ°ΡΠΈΠΊ ΠΏΡΠΎΠ΅ΠΊΡΠ° ΠΈ Π΄Π°ΡΡ Π·Π°ΡΠ΅Π»Π΅Π½ΠΈΡ.
ΠΠ½ ΠΎΠ±Π΅ΡΠΏΠ΅ΡΠΈΠ²Π°Π΅Ρ ΡΡΡΠ°ΡΠ΅Π³ΠΈΠΈ ΡΠΏΡΠ°Π²Π»Π΅Π½ΠΈΡ Π²ΡΠ΅ΠΌ ΠΎΠ±ΠΎΡΡΠ΄ΠΎΠ²Π°Π½ΠΈΠ΅ΠΌ ΠΈ ΡΠΈΡΡΠ΅ΠΌΠ°ΠΌΠΈ, ΠΎΡΠ½ΠΎΡΡΡΠΈΠΌΠΈΡΡ ΠΊ ΡΡΡΠΎΠΈΡΠ΅Π»ΡΠ½ΡΠΌ ΡΠ»ΡΠΆΠ±Π°ΠΌ, ΡΠ°ΠΊΠΈΠΌ ΠΊΠ°ΠΊ ΠΎΡ ΡΠ°Π½Π½Π°Ρ ΠΈ ΠΏΠΎΠΆΠ°ΡΠ½Π°Ρ ΡΠΈΠ³Π½Π°Π»ΠΈΠ·Π°ΡΠΈΡ, ΠΈ ΠΎΠΏΡΠ΅Π΄Π΅Π»ΡΠ΅Ρ ΡΠ΅Ρ Π½ΠΈΡΠ΅ΡΠΊΠΈΠ΅ ΡΡΠ΅Π±ΠΎΠ²Π°Π½ΠΈΡ ΠΊ ΡΠ΅Π»Π΅ΡΠΎΠ½Π°ΠΌ, Π΄Π°Π½Π½ΡΠΌ, ΠΊΠ°Π±Π΅Π»ΡΠΌ ΠΈ Π°ΡΠ΄ΠΈΠΎ/Π²ΠΈΠ·ΡΠ°Π»ΡΠ½ΡΠΌ ΠΏΠΎΡΡΠ΅Π±Π½ΠΎΡΡΡΠΌ.
Π‘Ρ
Π΅ΠΌΠ°ΡΠΈΡΠ΅ΡΠΊΠΈΠ΅ ΡΠ΅ΡΡΠ΅ΠΆΠΈ β ΠΏΠ»Π°Π½Ρ ΡΡΠ°ΠΆΠ΅ΠΉ, ΠΏΠ»Π°Π½Ρ ΡΡΠ°ΡΡΠΊΠ° ΠΈ ΡΠ°ΡΠ°Π΄Ρ Π·Π΄Π°Π½ΠΈΠΉ β ΠΏΡΠΎΠ²Π΅ΡΡΡΡΡΡ ΠΈ ΡΡΠΎΡΠ½ΡΡΡΡΡ Ρ ΡΠΎΡΠΊΠΈ Π·ΡΠ΅Π½ΠΈΡ ΡΡΠ½ΠΊΡΠΈΠΎΠ½Π°Π»ΡΠ½ΠΎΡΡΠΈ, ΡΠ΄ΠΎΠ±ΡΡΠ²Π° ΠΈΡΠΏΠΎΠ»ΡΠ·ΠΎΠ²Π°Π½ΠΈΡ, ΡΡΠ΅Π±ΡΠ΅ΠΌΡΡ
ΠΏΡΠΈΠΌΡΠΊΠ°Π½ΠΈΠΉ, ΡΠΎΠΎΡΠ²Π΅ΡΡΡΠ²ΠΈΡ Π½ΠΎΡΠΌΠ°ΠΌ, Π±Π΅Π·ΠΎΠΏΠ°ΡΠ½ΠΎΡΡΠΈ ΠΈ ΡΡΡΠ΅ΡΠΈΠΊΠΈ. ΠΡΠΎΠ³ΡΠ°ΠΌΠΌΠ° ΠΏΡΠΎΠ΅ΠΊΡΠ° ΠΈ ΡΡ
Π΅ΠΌΠ°ΡΠΈΡΠ΅ΡΠΊΠΈΠ΅ ΡΠ΅ΡΡΠ΅ΠΆΠΈ ΡΡΠ°ΡΠ΅Π»ΡΠ½ΠΎ ΠΏΡΠΎΠ²Π΅ΡΡΡΡΡΡ Π½Π° Π½Π°Π»ΠΈΡΠΈΠ΅ Π²ΠΎΠ·ΠΌΠΎΠΆΠ½ΡΡ
ΠΎΡΠΈΠ±ΠΎΠΊ ΠΈΠ»ΠΈ ΡΠΏΡΡΠ΅Π½ΠΈΠΉ.
ΠΠ»Π°Π½Ρ ΠΏΠ΅ΡΠ΅Π΄Π°ΡΡΡΡ ΠΈ ΠΎΠ±ΡΡΠΆΠ΄Π°ΡΡΡΡ Ρ ΠΏΠ΅ΡΡΠΎΠ½Π°Π»ΠΎΠΌ Π² Π΄ΡΡΠ³ΠΈΡ
ΠΎΠ±Π»Π°ΡΡΡΡ
Π£Π½ΠΈΠ²Π΅ΡΡΠΈΡΠ΅ΡΠ°, ΡΠ°ΠΊΠΈΡ
ΠΊΠ°ΠΊ ΡΠ»ΡΠΆΠ±Ρ ΡΠ΅Ρ
Π½ΠΈΡΠ΅ΡΠΊΠΎΠ³ΠΎ ΠΎΠ±ΡΠ»ΡΠΆΠΈΠ²Π°Π½ΠΈΡ, ΡΠ»ΡΠΆΠ±Ρ Ρ
ΡΠ°Π½Π΅Π½ΠΈΡ, Π»ΠΎΠ³ΠΈΡΡΠΈΠΊΠ°, ΠΈΠ½ΡΠΎΡΠΌΠ°ΡΠΈΠΎΠ½Π½ΡΠ΅ ΡΠ΅Ρ
Π½ΠΎΠ»ΠΎΠ³ΠΈΠΈ ΠΈ ΠΎΠ±ΡΠ΅ΡΡΠ²Π΅Π½Π½Π°Ρ Π±Π΅Π·ΠΎΠΏΠ°ΡΠ½ΠΎΡΡΡ, Π΄Π»Ρ Π²ΡΡΠ²Π»Π΅Π½ΠΈΡ Π²ΠΎΠ·ΠΌΠΎΠΆΠ½ΡΡ
ΠΏΡΠΎΠ±Π»Π΅ΠΌ ΠΈ ΠΊΠΎΠΎΡΠ΄ΠΈΠ½Π°ΡΠΈΠΈ Ρ ΠΏΠΎΡΡΠ΅Π±Π½ΠΎΡΡΡΠΌΠΈ ΠΈ ΠΏΡΠ°ΠΊΡΠΈΠΊΠΎΠΉ Π² ββΡΡΠΈΡ
ΠΎΠ±Π»Π°ΡΡΡΡ
.
ΠΡΠ°ΠΏ ΡΠ°Π·ΡΠ°Π±ΠΎΡΠΊΠΈ Π΄ΠΈΠ·Π°ΠΉΠ½Π° ΠΊΠ°ΡΠ°Π΅ΡΡΡ ΡΠ»Π΅Π΄ΡΡΡΠ΅Π³ΠΎ:
- ΠΠ½ΡΡΡΠ΅Π½Π½ΠΈΠ΅ ΠΈ Π²Π½Π΅ΡΠ½ΠΈΠ΅ ΡΡΡΠΎΠΈΡΠ΅Π»ΡΠ½ΡΠ΅ ΠΌΠ°ΡΠ΅ΡΠΈΠ°Π»Ρ ΠΈ ΠΎΡΠ΄Π΅Π»ΠΊΠ°.
- ΠΠΎΠ΄Π±ΠΎΡ ΠΈ ΠΏΠ»Π°Π½ΠΈΡΠΎΠ²ΠΊΠ° ΠΌΠ΅Π±Π΅Π»ΠΈ ΠΈ ΠΎΠ±ΠΎΡΡΠ΄ΠΎΠ²Π°Π½ΠΈΡ.
- ΠΡΠ°ΡΠ½ΠΎΠ΄Π΅ΡΠ΅Π²ΡΠΈΠΊΠΈ ΠΈ ΠΈΠ·Π³ΠΎΡΠΎΠ²Π»Π΅Π½ΠΈΠ΅ Π½Π° Π·Π°ΠΊΠ°Π·.
- Π‘Π²Π΅ΡΠΎΡΠ΅Ρ Π½ΠΈΡΠ΅ΡΠΊΠΈΠ΅ ΠΊΠΎΠ½ΡΡΡΡΠΊΡΠΈΠΈ.
- ΠΠ΅Ρ Π°Π½ΠΈΡΠ΅ΡΠΊΠΈΠ΅, ΡΠ»Π΅ΠΊΡΡΠΈΡΠ΅ΡΠΊΠΈΠ΅ ΠΈ ΡΠ°Π½ΡΠ΅Ρ Π½ΠΈΡΠ΅ΡΠΊΠΈΠ΅ ΡΠΈΡΡΠ΅ΠΌΡ.
ΠΠ° ΡΡΠ°ΠΏΠ΅ ΡΠ°Π·ΡΠ°Π±ΠΎΡΠΊΠΈ ΠΏΡΠΎΠ΅ΠΊΡΠ° ΡΡ
Π΅ΠΌΠ°ΡΠΈΡΠ΅ΡΠΊΠΈΠ΅ ΠΏΠ»Π°Π½Ρ ΠΈ ΡΠ°ΡΠ°Π΄Ρ Π°Π½Π°Π»ΠΈΠ·ΠΈΡΡΡΡΡΡ, ΠΏΠ΅ΡΠ΅ΡΠΌΠ°ΡΡΠΈΠ²Π°ΡΡΡΡ ΠΈ ΡΠ°ΡΡΠΈΡΡΡΡΡΡ, ΡΡΠΎΠ±Ρ Π²ΠΊΠ»ΡΡΠΈΡΡ Π²ΡΠ΅ Π΄Π΅ΡΠ°Π»ΠΈ ΠΈ ΡΠΏΠ΅ΡΠΈΡΠΈΠΊΠ°ΡΠΈΠΈ, Π½Π΅ΠΎΠ±Ρ
ΠΎΠ΄ΠΈΠΌΡΠ΅ Π΄Π»Ρ ΡΡΡΠΎΠΈΡΠ΅Π»ΡΡΡΠ²Π°. ΠΠΎΠΌΠΏΠΎΠ½Π΅Π½ΡΡ ΠΏΡΠΎΠ΅ΠΊΡΠ° ΡΠ°ΡΡΠΌΠ°ΡΡΠΈΠ²Π°ΡΡΡΡ Π΄ΠΎ ΠΌΠ΅Π»ΡΡΠ°ΠΉΡΠΈΡ
Π΄Π΅ΡΠ°Π»Π΅ΠΉ. Π§Π°ΡΡΠΎ Π²ΡΡΠ²Π»ΡΡΡΡΡ ΠΏΡΠΎΠ±Π»Π΅ΠΌΡ, Π²Π»ΠΈΡΡΡΠΈΠ΅ Π½Π° ΠΊΠΎΠ½ΡΡΡΡΠΊΡΠΈΠ²Π½ΠΎΡΡΡ ΠΈΠ»ΠΈ ΠΈΠΌΠ΅ΡΡΠΈΠ΅ ΡΠ΅ΡΠ°ΡΡΠ΅Π΅ Π·Π½Π°ΡΠ΅Π½ΠΈΠ΅ Π΄Π»Ρ Π²ΡΠΏΠΎΠ»Π½Π΅Π½ΠΈΡ ΠΏΡΠΎΠ³ΡΠ°ΠΌΠΌΡ ΠΏΡΠΎΠ΅ΠΊΡΠ°, ΠΈ ΠΊΠΎΡΠΎΡΡΠ΅ ΠΌΠΎΠ³ΡΡ ΠΏΠΎΡΡΠ΅Π±ΠΎΠ²Π°ΡΡ Π²Π½Π΅ΡΠ΅Π½ΠΈΡ ΠΈΠ·ΠΌΠ΅Π½Π΅Π½ΠΈΠΉ Π² ΠΏΡΠΎΠ³ΡΠ°ΠΌΠΌΡ ΠΏΡΠΎΠ΅ΠΊΡΠ° ΠΈΠ»ΠΈ Π² Π±ΡΠ΄ΠΆΠ΅Ρ, ΠΈΠ»ΠΈ Π² ΡΠΎ ΠΈ Π΄ΡΡΠ³ΠΎΠ΅.
Π ΠΊΠΎΠ½ΡΡ ΡΠ°Π·ΡΠ°Π±ΠΎΡΠΊΠΈ ΠΏΡΠΎΠ΅ΠΊΡΠ° ΠΏΡΠΎΠ΅ΠΊΡΠ½ΡΠ΅ ΡΠ΅ΡΡΠ΅ΠΆΠΈ ΠΈ ΡΠΏΠ΅ΡΠΈΡΠΈΠΊΠ°ΡΠΈΠΈ ΡΠ²Π»ΡΡΡΡΡ Π΄ΠΎΡΡΠ°ΡΠΎΡΠ½ΠΎ ΠΏΠΎΠ»Π½ΡΠΌΠΈ, ΡΡΠΎΠ±Ρ ΡΡΡΠ°Π½ΠΎΠ²ΠΈΡΡ ΠΈ ΠΎΠΏΡΠ΅Π΄Π΅Π»ΠΈΡΡ ΡΠ°Π·ΠΌΠ΅Ρ ΠΎΠ±ΡΠ΅ΠΊΡΠ°, ΡΡΠ½ΠΊΡΠΈΡ, ΠΊΠΎΠ½ΡΠΈΠ³ΡΡΠ°ΡΠΈΡ, ΠΏΡΠΎΡΡΡΠ°Π½ΡΡΠ²ΠΎ, ΡΠ°Π±ΠΎΡΡ ΠΈΠ»ΠΈ ΠΈΡΠΏΠΎΠ»ΡΠ·ΠΎΠ²Π°Π½ΠΈΠ΅ ΠΎΠ±ΠΎΡΡΠ΄ΠΎΠ²Π°Π½ΠΈΡ ΠΈ ΠΌΠ°ΡΠ΅ΡΠΈΠ°Π»ΠΎΠ² Π΄Π»Ρ Π²ΡΠ΅Ρ ΠΎΡΠ½ΠΎΠ²Π½ΡΡ ΡΡΡΠΎΠΈΡΠ΅Π»ΡΠ½ΡΡ ΠΊΠΎΠ½ΡΡΡΡΠΊΡΠΈΠΉ ΠΈ ΡΠΈΡΡΠ΅ΠΌ. Π‘ ΠΏΠΎΠΌΠΎΡΡΡ ΡΡΠΎΠΉ ΠΈΠ½ΡΠΎΡΠΌΠ°ΡΠΈΠΈ Π±ΡΠ΄ΠΆΠ΅Ρ ΠΏΡΠΎΠ΅ΠΊΡΠ°, Π³ΡΠ°ΡΠΈΠΊ ΠΈ Π²ΡΠ΅ ΠΏΠ»Π°Π½Ρ ΡΡΡΠΎΠΈΡΠ΅Π»ΡΡΡΠ²Π° ΠΎΠΊΠΎΠ½ΡΠ°ΡΠ΅Π»ΡΠ½ΠΎ ΡΠΎΠ³Π»Π°ΡΠΎΠ²Π°Π½Ρ.
ΠΡΠ°ΠΏ ΡΡΡΠΎΠΈΡΠ΅Π»ΡΠ½ΠΎΠΉ Π΄ΠΎΠΊΡΠΌΠ΅Π½ΡΠ°ΡΠΈΠΈ
ΠΡΠ°ΠΏ ΡΡΡΠΎΠΈΡΠ΅Π»ΡΠ½ΠΎΠΉ Π΄ΠΎΠΊΡΠΌΠ΅Π½ΡΠ°ΡΠΈΠΈ ΠΊΠ°ΡΠ°Π΅ΡΡΡ ΡΠ»Π΅Π΄ΡΡΡΠ΅Π³ΠΎ:
- Π‘ΠΎΠ±Π»ΡΠ΄Π΅Π½ΠΈΠ΅ Π²ΡΠ΅Ρ ΠΏΡΠΈΠΌΠ΅Π½ΠΈΠΌΡΡ Π³ΠΎΡΡΠ΄Π°ΡΡΡΠ²Π΅Π½Π½ΡΡ ΠΈ ΡΠ΅Π΄Π΅ΡΠ°Π»ΡΠ½ΡΡ ΠΊΠΎΠ΄Π΅ΠΊΡΠΎΠ² ΠΈ Π·Π°ΠΊΠΎΠ½ΠΎΠ².
- Π‘ΠΎΠΎΡΠ²Π΅ΡΡΡΠ²ΠΈΠ΅ ΡΠ½ΠΈΠ²Π΅ΡΡΠΈΡΠ΅ΡΡΠΊΠΈΠΌ ΡΡΠ°Π½Π΄Π°ΡΡΠ°ΠΌ.
- ΠΡΠΎΠ²Π΅ΡΠΊΠ° ΡΠΎΡΡΠΎΡΠ½ΠΈΡ ΡΡΡΠΎΠΈΡΠ΅Π»ΡΠ½ΠΎΠΉ ΠΏΠ»ΠΎΡΠ°Π΄ΠΊΠΈ.
- ΠΠΎΠ½ΡΡΠΎΠ»Ρ ΠΊΠ°ΡΠ΅ΡΡΠ²Π° Π½Π° ΡΡΠ°ΠΏΠ΅ ΡΡΡΠΎΠΈΡΠ΅Π»ΡΡΡΠ²Π°.
- ΠΡΠ΅Π½ΠΊΠΈ Π²ΡΠ΅Ρ ΡΠΎΠΏΡΡΡΡΠ²ΡΡΡΠΈΡ Π·Π°ΡΡΠ°Ρ.
ΠΠ»ΠΎΠΊ-ΡΡ Π΅ΠΌΠ° ΡΡΠ°ΠΏΠ° ΠΏΡΠΎΠ΅ΠΊΡΠΈΡΠΎΠ²Π°Π½ΠΈΡ
Π‘ΡΡΠΎΠΈΡΠ΅Π»ΡΠ½Π°Ρ Π΄ΠΎΠΊΡΠΌΠ΅Π½ΡΠ°ΡΠΈΡ ΡΠΎΡΡΠ°Π²Π»ΡΠ΅ΡΡΡ Π½Π° ΠΎΡΠ½ΠΎΠ²Π΅ ΠΏΡΠΎΠ΅ΠΊΡΠ½ΠΎΠΉ Π΄ΠΎΠΊΡΠΌΠ΅Π½ΡΠ°ΡΠΈΠΈ. ΠΠ½ΠΈ Π²ΠΊΠ»ΡΡΠ°ΡΡ Π² ΡΠ΅Π±Ρ Π²ΡΠ΅ Π°ΡΡ
ΠΈΡΠ΅ΠΊΡΡΡΠ½ΡΠ΅ ΡΠ΅ΡΡΠ΅ΠΆΠΈ ΠΈ ΡΠΏΠ΅ΡΠΈΡΠΈΠΊΠ°ΡΠΈΠΈ, Π½Π΅ΠΎΠ±Ρ
ΠΎΠ΄ΠΈΠΌΡΠ΅ Π΄Π»Ρ Π·Π°Π²Π΅ΡΡΠ΅Π½ΠΈΡ ΠΏΡΠΎΠ΅ΠΊΡΠ°, ΠΈ ΡΠ²Π»ΡΡΡΡΡ ΠΎΡΠ½ΠΎΠ²ΠΎΠΉ ΡΠ΅Π½Π΄Π΅ΡΠ½ΠΎΠΉ Π΄ΠΎΠΊΡΠΌΠ΅Π½ΡΠ°ΡΠΈΠΈ ΠΈ ΠΊΠΎΠ½ΡΡΠ°ΠΊΡΠ° Π½Π° ΡΡΡΠΎΠΈΡΠ΅Π»ΡΡΡΠ²ΠΎ.