ΠΠΈΠ·Π°ΠΉΠ½ ΡΡΡΠ΄ΠΈΠΈ Ρ ΠΎΠ΄Π½ΠΈΠΌ ΠΎΠΊΠ½ΠΎΠΌ: ΠΠ½ΡΠ΅ΡΡΠ΅Ρ ΠΊΠ²Π°ΡΡΠΈΡΡ-ΡΡΡΠ΄ΠΈΠΈ ΠΏΡΡΠΌΠΎΡΠ³ΠΎΠ»ΡΠ½ΠΎΠΉ ΠΏΠ»Π°Π½ΠΈΡΠΎΠ²ΠΊΠΈ Ρ ΠΎΠ΄Π½ΠΈΠΌ ΠΎΠΊΠ½ΠΎΠΌ
ΠΠ²Π°ΡΡΠΈΡΠ° β ΡΡΡΠ΄ΠΈΡ Ρ ΠΎΠ΄Π½ΠΈΠΌ ΠΎΠΊΠ½ΠΎΠΌ, Π΄ΠΈΠ·Π°ΠΉΠ½ Π΄Π»Ρ ΠΊΠΎΡΠΎΡΠΎΠΉ ΡΠ°Π·ΡΠ°Π±ΠΎΡΠ°ΡΡ ΠΈΠ½ΠΎΠ³Π΄Π° ΠΎΡΠ΅Π½Ρ ΠΏΡΠΎΠ±Π»Π΅ΠΌΠ°ΡΠΈΡΠ½ΠΎ, β Π½Π΅ ΡΠ΅Π΄ΠΊΠΎΡΡΡ, ΠΎΠ΄Π½Π°ΠΊΠΎ, ΠΌΠΎΠ»ΠΎΠ΄ΡΠ΅ ΠΈ ΠΊΡΠ΅Π°ΡΠΈΠ²Π½ΡΠ΅ ΠΌΠ°ΡΡΡΡΠΎ ΠΈΠ½ΡΠ΅ΡΡΠ΅ΡΠ½ΠΎΠΉ ΠΌΠΎΠ΄Ρ ΡΠΌΡΠ΄ΡΡΡΡΡΡ ΡΠΎΠ·Π΄Π°Π²Π°ΡΡ Π½Π°ΡΡΠΎΡΡΠΈΠ΅ ΡΠ΅Π΄Π΅Π²ΡΡ, Π½Π΅ΡΠΌΠΎΡΡΡ Π½ΠΈ Π½Π° ΡΡΠΎ!
Β
ΠΠ»Π»ΡΠ·ΠΈΡ ΠΎΠ±ΠΌΠ°Π½Π°: Π΄ΠΈΠ·Π°ΠΉΠ½Π΅ΡΡΠΊΠΈΠ΅ ΠΏΡΠΈΠ΅ΠΌΡ, ΡΠ²Π΅Π»ΠΈΡΠΈΠ²Π°ΡΡΠΈΠ΅ ΠΏΡΠΎΡΡΡΠ°Π½ΡΡΠ²ΠΎ
Π§ΡΠΎΠ±Ρ ΠΊΠ²Π°ΡΡΠΈΡΠ° ΡΠ°Π΄ΠΎΠ²Π°Π»Π° ΡΡΡΠΎΠΌ, ΠΏΡΠΎΡΡΠΎΡΠΎΠΌ, ΠΏΡΠ°ΠΊΡΠΈΡΠ½ΠΎΡΡΡΡ ΠΈ ΠΊΡΠ°ΡΠΎΡΠΎΠΉ, ΡΠ»Π΅Π΄ΡΠ΅Ρ ΠΎΠ±ΡΠ°ΡΠΈΡΡ Π²Π½ΠΈΠΌΠ°Π½ΠΈΠ΅ Π½Π° ΡΠ΅ΠΊΠΎΠΌΠ΅Π½Π΄Π°ΡΠΈΠΈ Π²ΡΡΠΎΠΊΠΎΠΏΡΠΎΡΠ΅ΡΡΠΈΠΎΠ½Π°Π»ΡΠ½ΡΡ Π³ΡΡΡ Π΄ΠΈΠ·Π°ΠΉΠ½Π΅ΡΡΠΊΠΎΠ³ΠΎ ΠΈΡΠΊΡΡΡΡΠ²Π°, ΠΊΠΎΡΠΎΡΡΠ΅ Π±Π°Π»ΡΡΡ ΠΏΠΎΡΡΡΡΠ°ΡΡΠΈΠΌΠΈ ΡΠ°Π±ΠΎΡΠ°ΠΌΠΈ.
Β
- Π¦Π²Π΅ΡΠΎΠ²Π°Ρ Π³Π°ΠΌΠΌΠ°. ΠΠ»Ρ ΡΠ²Π΅Π»ΠΈΡΠ΅Π½ΠΈΡ ΠΏΡΠΎΡΡΡΠ°Π½ΡΡΠ²Π° ΡΠ»Π΅Π΄ΡΠ΅Ρ ΠΏΡΠΈΠΌΠ΅Π½ΡΡΡ ΠΎΡΡΠ΅Π½ΠΊΠΈ ΠΏΠ°ΡΡΠ΅Π»ΡΠ½ΠΎΠΉ ΠΏΠ°Π»ΠΈΡΡΡ, ΠΏΠΎΡΠΊΠΎΠ»ΡΠΊΡ ΠΎΠ½ΠΈ Π΄Π΅Π»Π°ΡΡ ΠΏΠΎΠΌΠ΅ΡΠ΅Π½ΠΈΠ΅ Π²ΠΎΠ·Π΄ΡΡΠ½ΡΠΌ ΠΈ Π½Π΅Π²Π΅ΡΠΎΠΌΡΠΌ. Π‘ΡΡΠ΅ΡΡΠ²ΡΠ΅Ρ ΠΏΡΠΈΠ΅ΠΌ, ΡΡΡΡ ΠΊΠΎΡΠΎΡΠΎΠ³ΠΎ Π·Π°ΠΊΠ»ΡΡΠ°Π΅ΡΡΡ Π² ΠΈΡΠΏΠΎΠ»ΡΠ·ΠΎΠ²Π°Π½ΠΈΠΈ Ρ ΠΎΠ»ΠΎΠ΄Π½ΡΡ ΡΠΎΠ½ΠΎΠ² Π² ΡΠΎΡΠ΅ΡΠ°Π½ΠΈΠΈ Ρ ΡΠ΅ΠΏΠ»ΡΠΌΠΈ ΡΠ²Π΅ΡΠ°ΠΌΠΈ, ΡΡΠΎ Π΄Π΅Π»Π°Π΅Ρ ΠΊΠΎΠΌΠ½Π°ΡΡ Π³Π»ΡΠ±ΠΆΠ΅, ΡΠΈΡΠ΅ ΠΈ Π²ΡΡΠ΅, ΡΠΌΠ΅ΡΠ°Ρ Π³ΡΠ°Π½ΠΈΡΡ.
- ΠΡΠ²Π΅ΡΠ΅Π½ΠΈΠ΅. Π§Π΅ΠΌ Π±ΠΎΠ»ΡΡΠ΅ ΠΎΡΠ²Π΅ΡΠΈΡΠ΅Π»ΡΠ½ΡΡ ΠΏΡΠΈΠ±ΠΎΡΠΎΠ², ΡΠ΅ΠΌ Π»ΡΡΡΠ΅, ΡΠ°ΠΊ ΠΊΠ°ΠΊ ΡΠ²Π΅Ρ ΡΠ²Π»ΡΠ΅ΡΡΡ ΠΏΡΠ΅ΠΊΡΠ°ΡΠ½ΡΠΌ ΠΊΠΎΡΡΠ΅ΠΊΡΠΎΡΠΎΠΌ. ΠΠΈΠΏΡΠΎΠ²ΡΠ΅, Π³Π°Π»ΠΎΠ³Π΅Π½Π½ΡΠ΅ ΡΠΎΡΠ΅ΡΠ½ΡΠ΅ ΡΠ²Π΅ΡΠΈΠ»ΡΠ½ΠΈΠΊΠΈ, Π»ΡΡΡΡΡ, ΡΠΎΡΡΠ΅ΡΡ ΠΏΠΎΠΌΠΎΠ³ΡΡ ΡΠ²Π΅Π»ΠΈΡΠΈΡΡ ΠΏΡΠΎΡΡΡΠ°Π½ΡΡΠ²ΠΎ, Π½Π°ΠΏΠΎΠ»Π½ΠΈΠ² ΠΊΠ²Π°ΡΡΠΈΡΡ ΠΎΠ±ΠΈΠ»ΠΈΠ΅ΠΌ ΡΠ²Π΅ΡΠ°.
- ΠΠ°Π»ΠΈΡΠΈΠ΅ Π·Π΅ΡΠΊΠ°Π». ΠΠΈΠ·Π°ΠΉΠ½Π΅ΡΡ ΡΠΎΠ²Π΅ΡΡΡΡ:
- ΡΠ΄Π΅Π»Π°ΡΡ Π·Π΅ΡΠΊΠ°Π»ΡΠ½ΡΠΌ ΠΏΠΎΡΠΎΠ»ΠΎΠΊ, ΡΡΠΎΠ±Ρ ΠΏΡΠΈΠΏΠΎΠ΄Π½ΡΡΡ Π΅Π³ΠΎ;
- ΠΏΡΠΈΡΠΌΠΎΡΡΠ΅ΡΡΡΡ ΠΊ Π·Π΅ΡΠΊΠ°Π»ΡΠ½ΠΎΠΌΡ ΠΎΡΠΎΡΠΌΠ»Π΅Π½ΠΈΡ ΠΎΠ΄Π½ΠΎΠΉ ΠΈΠ· ΡΡΠ΅Π½ β ΠΏΡΠΈΠ΅ΠΌ Π²ΠΈΠ·ΡΠ°Π»ΡΠ½ΠΎ ΡΠ²Π΅Π»ΠΈΡΠΈΡ ΠΎΠ±ΡΠ΅ΠΌΡ ΠΏΠΎΠΌΠ΅ΡΠ΅Π½ΠΈΡ;
- ΡΠ°ΡΠΏΠΎΠ»ΠΎΠΆΠΈΡΡ Π·Π΅ΡΠΊΠ°Π»ΠΎ Π½Π°ΠΏΡΠΎΡΠΈΠ² ΠΎΠΊΠ½Π°, ΠΎΡΠΎΠ±Π΅Π½Π½ΠΎ, Π΅ΡΠ»ΠΈ ΠΎΠ½ΠΎ ΠΎΠ΄Π½ΠΎ Π² ΡΡΡΠ΄ΠΈΠΈ β Ρ ΠΈΡΡΠΎΡΡΡ ΠΏΡΠΈΠ±Π°Π²ΠΈΡ ΡΠ²Π΅ΡΠ° ΠΈ, ΠΊΠΎΠ½Π΅ΡΠ½ΠΎ ΠΆΠ΅, Π·ΡΠΈΡΠ΅Π»ΡΠ½ΠΎ ΡΠ°ΡΡΠΈΡΠΈΡ ΡΡΠ΅Π½Ρ;
- ΡΡΡΠ°Π½ΠΎΠ²ΠΈΡΡ Π±ΠΎΠ»ΡΡΠΎΠ΅ Π·Π΅ΡΠΊΠ°Π»ΠΎ ΠΏΠΎΠ·Π°Π΄ΠΈ ΠΎΡΠ²Π΅ΡΠΈΡΠ΅Π»ΡΠ½ΡΡ ΠΏΡΠΈΠ±ΠΎΡΠΎΠ² Π΄Π»Ρ ΠΏΡΠΈΠ΄Π°Π½ΠΈΡ ΠΏΠΎΠΌΠ΅ΡΠ΅Π½ΠΈΡ Π³Π»ΡΠ±ΠΈΠ½Ρ;
- ΠΏΠΎΠ²Π΅ΡΠΈΡΡ Π·Π΅ΡΠΊΠ°Π»ΠΎ ΡΠ°ΠΊΠΈΠΌ ΠΎΠ±ΡΠ°Π·ΠΎΠΌ, ΡΡΠΎΠ±Ρ Π² Π½Π΅ΠΌ ΠΎΡΡΠ°ΠΆΠ°Π»ΡΡ ΡΡΠΊΠΈΠΉ ΠΈ ΠΈΠ½ΡΠ΅ΡΠ΅ΡΠ½ΡΠΉ Π°ΠΊΡΠ΅ΡΡΡΠ°Ρ, ΠΏΡΠΈΡΡΠ³ΠΈΠ²Π°ΡΡΠΈΠΉ Π²Π·Π³Π»ΡΠ΄, ΡΡΠΎ ΠΏΠΎΠ·Π²ΠΎΠ»ΠΈΡ ΡΠΎΡΡΠ΅Π΄ΠΎΡΠΎΡΠΈΡΡ Π²Π½ΠΈΠΌΠ°Π½ΠΈΠ΅ Π½Π° Π½Π΅ΠΌ, Π° Π½Π΅ Π½Π° ΠΌΠΈΠ½ΠΈΠ°ΡΡΡΠ½ΡΡ ΡΠ°Π·ΠΌΠ΅ΡΠ°Ρ ΠΊΠ²Π°ΡΡΠΈΡΡ.
- ΠΠ½ΠΎΠ³ΠΎΡΡΠ½ΠΊΡΠΈΠΎΠ½Π°Π»ΡΠ½ΡΠ΅ ΠΏΡΠ΅Π΄ΠΌΠ΅ΡΡ ΠΎΠ±ΡΡΠ°Π½ΠΎΠ²ΠΊΠΈ. ΠΠΏΡΡΠ½ΡΠ΅ ΠΌΠ°ΡΡΡΡΠΎ ΠΈΠ½ΡΠ΅ΡΡΠ΅ΡΠ½ΠΎΠΉ ΠΌΠΎΠ΄Ρ ΡΠ΅ΠΊΠΎΠΌΠ΅Π½Π΄ΡΡΡ ΠΏΡΠΈΠΎΠ±ΡΠ΅ΡΡΠΈ:
- ΡΡΠ°Π½ΡΡΠΎΡΠΌΠΈΡΡΠ΅ΠΌΡΡ ΠΌΠ΅Π±Π΅Π»Ρ;
- ΠΏΡΠ΅Π΄ΠΌΠ΅ΡΡ Ρ Π·Π΅ΡΠΊΠ°Π»ΡΠ½ΠΎΠΉ, ΠΏΡΠΎΠ·ΡΠ°ΡΠ½ΠΎΠΉ, Π³Π»ΡΠ½ΡΠ΅Π²ΠΎΠΉ ΠΏΠΎΠ²Π΅ΡΡ Π½ΠΎΡΡΡΡ;
- ΠΏΡΠΈΠ·Π΅ΠΌΠΈΡΡΡΡ ΠΌΠ΅Π±Π΅Π»Ρ ΡΠ²Π΅ΡΠ»ΡΡ ΡΠΎΠ½ΠΎΠ²;
- Π²ΡΡΡΠ°ΠΈΠ²Π°Π΅ΠΌΡΠ΅ ΠΏΡΠ΅Π΄ΠΌΠ΅ΡΡ ΠΈΠ½ΡΠ΅ΡΡΠ΅ΡΠ°.
- ΠΡΠ°Π²ΠΈΠ»ΡΠ½ΠΎΠ΅ Π·ΠΎΠ½ΠΈΡΠΎΠ²Π°Π½ΠΈΠ΅. Π Π°Π·Π΄Π΅Π»ΠΈΡΡ ΠΊΠ²Π°ΡΡΠΈΡΡ-ΡΡΡΠ΄ΠΈΡ Π½Π° ΠΎΠ±Π»Π°ΡΡΠΈ ΠΌΠΎΠΆΠ½ΠΎ Ρ ΠΏΠΎΠΌΠΎΡΡΡ:
- ΡΡΠ΅ΠΊΠ»ΡΠ½Π½ΡΡ ΡΠΈΡΠΌ;
- Π·Π΅ΡΠΊΠ°Π»ΡΠ½ΡΡ ΠΏΠ΅ΡΠ΅Π³ΠΎΡΠΎΠ΄ΠΎΠΊ;
- ΠΏΠΎΠ΄ΠΈΡΠΌΠ°;
- ΠΌΠ½ΠΎΠ³ΠΎΡΡΠΎΠ²Π½Π΅Π²ΠΎΠ³ΠΎ ΠΏΠΎΡΠΎΠ»ΠΊΠ°;
- ΡΠ°Π·Π½ΠΎΠ³ΠΎ ΠΎΡΠ΄Π΅Π»ΠΎΡΠ½ΠΎΠ³ΠΎ ΠΌΠ°ΡΠ΅ΡΠΈΠ°Π»Π°;
- ΠΏΡΠ΅Π΄ΠΌΠ΅ΡΠΎΠ² ΠΌΠ΅Π±Π΅Π»ΠΈ.
- ΠΠΈΠ½ΠΈΠΌΡΠΌ Π΄Π΅ΠΊΠΎΡΠ°. Π Π°Π·Π»ΠΈΡΠ½ΡΠ΅ Π°ΠΊΡΠ΅ΡΡΡΠ°ΡΡ Π·Π°Ρ Π»Π°ΠΌΠ»ΡΡΡ ΠΏΠΎΠΌΠ΅ΡΠ΅Π½ΠΈΠ΅. ΠΠ΅Π»Π°ΡΠ΅Π»ΡΠ½ΠΎ ΡΠ΄Π΅Π»Π°ΡΡ Π°ΠΊΡΠ΅Π½Ρ Π½Π° ΠΎΠ΄Π½ΠΎΠΌ ΡΠΊΡΠΊΠ»ΡΠ·ΠΈΠ²Π½ΠΎΠΌ ΠΏΡΠ΅Π΄ΠΌΠ΅ΡΠ΅.
ΠΡΠΎΡΡΡΠ΅ ΠΏΡΠΈΠ΅ΠΌΡ ΡΠΏΠΎΡΠΎΠ±Π½Ρ Π²ΠΈΠ·ΡΠ°Π»ΡΠ½ΠΎ ΡΠ²Π΅Π»ΠΈΡΠΈΡΡ ΠΏΠΎΠ»Π΅Π·Π½ΠΎΠ΅ ΠΏΡΠΎΡΡΡΠ°Π½ΡΡΠ²ΠΎ, Π½Π°ΠΏΠΎΠ»Π½ΠΈΠ² Π΅Π³ΠΎ ΠΎΠ±ΠΈΠ»ΠΈΠ΅ΠΌ ΡΠ²Π΅ΡΠ°, Π»Π΅Π³ΠΊΠΎΡΡΡΡ ΠΈ ΡΠ²Π΅ΠΆΠ΅ΡΡΡΡ.
Β
Π€ΠΎΡΠΎΡΠ°Π±ΠΎΡΡ ΠΏΡΠΎΡΠ΅ΡΡΠΈΠΎΠ½Π°Π»ΠΎΠ²: ΡΡΠ½ΠΊΡΠΈΠΎΠ½Π°Π»ΡΠ½ΠΎΡΡΡ, ΠΊΠΎΠΌΡΠΎΡΡΠ°Π±Π΅Π»ΡΠ½ΠΎΡΡΡ ΠΈ ΡΡΡΠ΅ΡΠΈΡΠ½ΠΎΡΡΡ Π² ΠΎΠ΄Π½ΠΎΠΌ ΠΈΠ½ΡΠ΅ΡΡΠ΅ΡΠ΅
Π€ΠΎΡΠΎ β ΠΏΡΠΎΠ΅ΠΊΡ β 1: ΡΡΡΠΎΠ³ΠΈΠΉ, Π½ΠΎ ΡΠΈΠΌΠΏΠ°ΡΠΈΡΠ½ΡΠΉ Π΄ΠΈΠ·Π°ΠΉΠ½ ΡΡΡΠ΄ΠΈΠΈ
ΠΠΈΠ·Π°ΠΉΠ½Π΅Ρ ΠΠ»Π΅Π½Π° ΠΠΎΡΠ΅ΠΌΠΊΠΈΠ½Π°, Π½Π΅ΡΠΌΠΎΡΡΡ Π½Π° ΠΊΡΠΎΡΠ΅ΡΠ½ΡΠ΅ ΡΠ°Π·ΠΌΠ΅ΡΡ ΠΊΠ²Π°ΡΡΠΈΡΡ ΠΈ ΡΠΊΡΠΎΠΌΠ½ΡΠΉ Π±ΡΠ΄ΠΆΠ΅Ρ, ΡΠΎΠ·Π΄Π°Π»Π° ΠΏΡΠ΅ΠΊΡΠ°ΡΠ½ΡΠΉ ΠΈΠ½ΡΠ΅ΡΡΠ΅Ρ, ΠΊΠΎΡΠΎΡΡΠΉ Π±Π°Π»ΡΠ΅Ρ ΡΡΡΠΎΠΌ, ΠΏΡΠ°ΠΊΡΠΈΡΠ½ΠΎΡΡΡΡ, Π²ΡΡΠΎΠΊΠΈΠΌ ΡΡΠΈΠ»Π΅ΠΌ. Π ΠΊΠΎΠΌΠ½Π°ΡΠ΅ ΠΊΡΠ°ΡΡΠ΅ΡΡΡ Π²ΡΠ΅Π³ΠΎ Π»ΠΈΡΡ ΠΎΠ΄Π½ΠΎ ΠΎΠΊΠ½ΠΎ, ΠΊΠ°Π·Π°Π»ΠΎΡΡ Π±Ρ, ΠΏΠΎΠΌΠ΅ΡΠ΅Π½ΠΈΠ΅ Π΄ΠΎΠ»ΠΆΠ½ΠΎ ΠΏΠΎΠ³ΡΡΠ·ΠΈΡΡΡΡ Π²ΠΎ ΠΌΡΠ°ΠΊ. ΠΠ΄Π½Π°ΠΊΠΎ ΡΠ°Π·Π½ΠΎΠΎΠ±ΡΠ°Π·Π½ΡΠ΅ ΠΏΡΠΈΠ±ΠΎΡΡ ΠΎΡΠ²Π΅ΡΠ΅Π½ΠΈΡ Π½Π°ΠΏΠΎΠ»Π½ΡΡΡ ΠΊΠ²Π°ΡΡΠΈΡΡ ΠΎΠ±ΠΈΠ»ΠΈΠ΅ΠΌ ΡΠ²Π΅ΡΠ°. ΠΡΠΎΠΌΠ΅ ΡΠΎΠ³ΠΎ, ΡΠ΅ΠΌΠ½ΡΠ΅ ΠΈ ΡΠ²Π΅ΡΠ»ΡΠ΅ ΡΠΎΠ½Π°, Π±Π΅Π·ΡΠΏΡΠ΅ΡΠ½ΠΎ ΡΠΎΡΠ΅ΡΠ°ΡΡΡ Π΄ΡΡΠ³ Ρ Π΄ΡΡΠ³ΠΎΠΌ, ΠΎΡΠ»ΠΈΡΠ½ΠΎ ΠΊΠΎΡΡΠ΅ΠΊΡΠΈΡΡΡΡ ΠΊΠΎΠΌΠ½Π°ΡΡ ΠΈ ΠΏΡΠΈΠ΄Π°ΡΡ Π΅ΠΉ ΠΎΡΠΎΠ±Π΅Π½Π½ΡΡ Π½ΠΎΡΠΎΠΊ. Π Π³ΡΠ°ΠΌΠΎΡΠ½ΠΎ, ΠΏΠΎΠ΄ΠΎΠ±ΡΠ°Π½Π½Π°Ρ ΠΌΠ΅Π±Π΅Π»Ρ ΠΈ Π΄Π΅ΠΊΠΎΡ, Π½Π΅ Π·Π°Ρ Π»Π°ΠΌΠ»ΡΡΡ ΠΏΡΠΎΡΡΡΠ°Π½ΡΡΠ²ΠΎ, Π°, Π½Π°ΠΎΠ±ΠΎΡΠΎΡ, Π΅Π³ΠΎ ΡΠ²Π΅Π»ΠΈΡΠΈΠ²Π°ΡΡ.
Β

Β

Β

Β

Β

Β

Β

Β
Β
Π€ΠΎΡΠΎ β ΠΏΡΠΎΠ΅ΠΊΡ β 2: ΡΡΡΠ½Π°Ρ ΡΡΡΠ΄ΠΈΡ Ρ ΠΎΠ΄Π½ΠΈΠΌ ΠΎΠΊΠ½ΠΎΠΌ
ΠΠ½Π΄ΡΠ΅ΠΉ ΠΡΠ·ΠΈΠ½ Π½Π° ΠΏΡΠΈΠΌΠ΅ΡΠ΅ ΡΠ²ΠΎΠ΅ΠΉ ΡΠ°Π±ΠΎΡΡ Π΄ΠΎΠΊΠ°Π·Π°Π», ΡΡΠΎ ΠΊΡΠΎΡΠ΅ΡΠ½ΡΠΉ ΡΠ°Π·ΠΌΠ΅Ρ ΠΊΠ²Π°ΡΡΠΈΡΡ ΠΈ Π½Π°Π»ΠΈΡΠΈΠ΅ ΡΠΎΠ»ΡΠΊΠΎ ΠΎΠ΄Π½ΠΎΠ³ΠΎ ΠΎΠΊΠ½Π° β Π½Π΅ ΠΏΠΎΠΌΠ΅Ρ Π° Π΄Π»Ρ ΠΌΡΠ³ΠΊΠΎΠ³ΠΎ, ΡΠ΅ΠΏΠ»ΠΎΠ³ΠΎ ΠΈ ΡΠ²Π΅ΡΠ»ΠΎΠ³ΠΎ ΠΈΠ½ΡΠ΅ΡΡΠ΅ΡΠ°. ΠΠΎΠΌΠ΅ΡΠ΅Π½ΠΈΠ΅ Π²ΡΠ³Π»ΡΠ΄ΠΈΡ Π½Π΅ ΠΏΡΠΎΡΡΠΎ ΠΌΠΎΠ΄Π½ΠΎ, Π° ΠΏΠΎ-Π΄ΠΎΠΌΠ°ΡΠ½Π΅ΠΌΡ ΡΡΡΠ½ΠΎ. Π’Π°ΠΊΠΎΠΉ ΡΡΡΠ΅ΠΊΡ ΠΏΠΎΠ»ΡΡΠΈΠ»ΡΡ Π±Π»Π°Π³ΠΎΠ΄Π°ΡΡ Π³Π°ΡΠΌΠΎΠ½ΠΈΡΠ½ΠΎΠΌΡ ΡΠΎΡΠ΅ΡΠ°Π½ΠΈΡ Π±Π΅Π»ΡΡ , Π±Π΅ΠΆΠ΅Π²ΡΡ , ΠΈΠ·ΡΠΌΡΡΠ΄Π½ΡΡ , Π±ΠΈΡΡΠ·ΠΎΠ²ΡΡ , ΡΠ΅ΡΡΡ ΠΈ ΠΊΠΎΡΠΈΡΠ½Π΅Π²ΡΡ ΠΎΡΡΠ΅Π½ΠΊΠΎΠ². ΠΡΠΎΠΌΠ΅ ΡΠΎΠ³ΠΎ, Π±Π»Π΅ΡΠΊ Π³Π»ΡΠ½ΡΠ΅Π²ΡΡ ΠΏΠΎΠ²Π΅ΡΡ Π½ΠΎΡΡΠ΅ΠΉ, Π½Π°Π»ΠΈΡΠΈΠ΅ ΠΌΠ½ΠΎΠΆΠ΅ΡΡΠ²Π° ΠΏΡΠΈΠ±ΠΎΡΠΎΠ² ΠΎΡΠ²Π΅ΡΠ΅Π½ΠΈΡ ΠΈΡΠΊΡΡΠ½ΠΎ ΠΊΠΎΡΡΠ΅ΠΊΡΠΈΡΡΡΡ ΠΏΠΎΠΌΠ΅ΡΠ΅Π½ΠΈΠ΅. ΠΠ΅Π±Π΅Π»Ρ ΡΠ°ΠΊΠΆΠ΅ Π·Π°ΡΠ»ΡΠΆΠΈΠ²Π°Π΅Ρ Π²Π½ΠΈΠΌΠ°Π½ΠΈΡ, ΠΏΠΎΡΠΊΠΎΠ»ΡΠΊΡ Π±Π°ΡΠ½Π°Ρ ΡΡΠΎΠΉΠΊΠ°, ΡΡΡΠ»ΡΡ, ΠΆΡΡΠ½Π°Π»ΡΠ½ΡΠΉ ΡΡΠΎΠ»ΠΈΠΊ ΠΊΡΠ°ΡΡΡΡΡΡ Π½Π° Π²ΡΡΠΎΠΊΠΈΡ Π΄Π»ΠΈΠ½Π½ΡΡ Π½ΠΎΠΆΠΊΠ°Ρ , Π° Π΄ΠΈΠ²Π°Π½ ΠΈΠΌΠ΅Π΅Ρ Π½ΠΈΠ·ΠΊΡΡ ΡΠΏΠΈΠ½ΠΊΡ, ΡΡΠΎ ΠΏΠΎΠ·Π²ΠΎΠ»ΡΠ΅Ρ Π½Π°ΡΠ»Π°ΠΆΠ΄Π°ΡΡΡΡ ΠΏΠΎΠ»Π΅Π·Π½ΡΠΌ ΠΏΡΠΎΡΡΡΠ°Π½ΡΡΠ²ΠΎΠΌ, ΡΠ°ΠΊ ΠΊΠ°ΠΊ ΡΠ°ΠΊΠΈΠ΅ ΠΏΡΠΈΠ΅ΠΌΡ Π·Π½Π°ΡΠΈΡΠ΅Π»ΡΠ½ΠΎ Π΅Π³ΠΎ ΡΠ²Π΅Π»ΠΈΡΠΈΠ²Π°ΡΡ.
Β

Β

Β

Β

Β

Β

Β

Β
Π€ΠΎΡΠΎ β ΠΏΡΠΎΠ΅ΠΊΡ β 3: ΠΊΠ²Π°ΡΡΠΈΡΠ° β ΡΡΡΠ΄ΠΈΡ Ρ Π²ΠΈΡΠ°ΡΡΠΈΠΌΠΈ Π½ΠΎΡΠΊΠ°ΠΌΠΈ ΡΠΏΠΎΠΊΠΎΠΉΡΡΠ²ΠΈΡ ΠΈ ΡΠ²Π΅ΠΆΠ΅ΡΡΠΈ
ΠΠ»ΡΠ΄Ρ Π½Π° ΡΡΡ ΡΡΡΠ΄ΠΈΡ, Π½Π΅ Π²Π΅ΡΠΈΡΡΡ, ΡΡΠΎ Π΅Π΅ ΠΏΠ»ΠΎΡΠ°Π΄Ρ Π²ΡΠ΅Π³ΠΎ Π»ΠΈΡΡ 29,5 ΠΊΠ². ΠΌ ΠΈ ΠΈΠΌΠ΅Π΅ΡΡΡ ΡΠΎΠ»ΡΠΊΠΎ ΠΎΠ΄Π½ΠΎ ΠΎΠΊΠ½ΠΎ, ΠΏΠΎΡΠΊΠΎΠ»ΡΠΊΡ Π²ΡΠ³Π»ΡΠ΄ΠΈΡ ΠΎΠ½Π° ΠΏΡΠΎΡΡΠΎΡΠ½ΠΎΠΉ, ΡΠ²Π΅ΡΠ»ΠΎΠΉ ΠΈ Π²ΠΎΠ·Π΄ΡΡΠ½ΠΎΠΉ, Π° Π°ΡΡΠ° ΡΠΏΠΎΡΠΎΠ±ΡΡΠ²ΡΠ΅Ρ ΡΠ°ΡΡΠ»Π°Π±Π»Π΅Π½ΠΈΡ ΠΈ ΡΠΌΠΈΡΠΎΡΠ²ΠΎΡΠ΅Π½ΠΈΡ. Π Π΅Π·ΡΠ»ΡΡΠ°Ρ ΠΏΠΎΠ»ΡΡΠΈΠ»ΡΡ ΡΠ°ΠΊΠΈΠΌ Π±Π»Π°Π³ΠΎΠ΄Π°ΡΡ Π½Π΅ΠΆΠ½ΠΎΠΉ ΡΠ²Π΅ΡΠΎΠ²ΠΎΠΉ ΠΏΠ°Π»ΠΈΡΡΠ΅, ΠΌΠ½ΠΎΠΆΠ΅ΡΡΠ²Ρ ΠΏΡΠΈΠ±ΠΎΡΠΎΠ² ΠΎΡΠ²Π΅ΡΠ΅Π½ΠΈΡ, Π²ΠΊΡΠ°ΠΏΠ»Π΅Π½ΠΈΡΠΌ Π·Π΅Π»Π΅Π½ΠΈ, ΠΏΡΠΈΠ·Π΅ΠΌΠΈΡΡΠΎΠΉ ΠΌΠ΅Π±Π΅Π»ΠΈ, ΠΎΡΠΈΠ³ΠΈΠ½Π°Π»ΡΠ½ΠΎΠΌΡ Π΄Π΅ΠΊΠΎΡΡ ΠΈ Π³Π»ΡΠ½ΡΠ΅Π²ΡΠΌ ΠΏΠΎΠ²Π΅ΡΡ Π½ΠΎΡΡΡΠΌ. ΠΡΠ΅ ΠΏΡΠ΅Π΄ΠΌΠ΅ΡΡ ΠΎΠ±ΡΡΠ°Π½ΠΎΠ²ΠΊΠΈ ΠΈ ΠΎΠ±Π»ΠΈΡΠΎΠ²ΠΊΠ°, ΡΠ»ΠΎΠ²Π½ΠΎ ΡΠΌΠ΅ΡΠ°ΡΡ Π³ΡΠ°Π½ΠΈΡΡ, Π΄Π΅Π»Π°Ρ ΠΏΠΎΠΌΠ΅ΡΠ΅Π½ΠΈΠ΅ Π½Π΅Π²Π΅ΡΠΎΠΌΡΠΌ.
Β

Β

Β

Β

Β

Β

Β

Β
Π€ΠΎΡΠΎ β ΠΏΡΠΎΠ΅ΠΊΡ β 4: ΡΠΎΠΌΠ°Π½ΡΠΈΡΠ½ΡΠΉ ΠΈ Π½Π΅ΠΆΠ½ΡΠΉ Π΄ΠΈΠ·Π°ΠΉΠ½ ΠΊΠ²Π°ΡΡΠΈΡΡ β ΡΡΡΠ΄ΠΈΠΈ
ΠΠΈΠ½ΠΈΠ°ΡΡΡΠ½Π°Ρ ΠΊΠ²Π°ΡΡΠΈΡΠ° ΠΏΠΎΡΠ»Π΅ ΡΠΌΠ΅Π»ΡΡ ΠΌΠ°Π½ΠΈΠΏΡΠ»ΡΡΠΈΠΉ ΠΠ»ΡΠ³ΠΈ Π§Π΅ΠΊΠΌΠ°ΡΠ΅Π²ΠΎΠΉ Π²ΡΠ³Π»ΡΠ΄ΠΈΡ ΠΏΡΠΈΠ²Π΅ΡΠ»ΠΈΠ²ΠΎ, ΡΠ°Π΄ΡΡΠ½ΠΎ ΠΈ Π½Π΅Π²Π΅ΡΠΎΠΌΠΎ. ΠΡΠ°ΡΠΎΠ²Π°ΡΠ΅Π»ΡΠ½ΡΡ ΠΊΠΎΠΌΠΏΠΎΠ·ΠΈΡΠΈΡ, ΠΌΠ°Π½ΡΡΡΡ ΠΏΡΠ΅Π΄Π°ΡΡΡΡ ΠΌΠ΅ΡΡΠ°Π½ΠΈΡΠΌ, ΡΠΎΠ·Π΄Π°Π»ΠΈ Π±Π΅Π»ΠΎ-ΡΠ΅ΡΠ°Ρ Π³Π°ΠΌΠΌΠ° Ρ Π²ΠΊΡΠ°ΠΏΠ»Π΅Π½ΠΈΡΠΌΠΈ ΠΊΠΎΡΠΈΡΠ½Π΅Π²ΡΡ ΡΠΎΠ½ΠΎΠ², Π΄ΠΈΠ²Π½Π°Ρ ΠΈΠ³ΡΠ° ΡΠ°ΠΊΡΡΡ, ΡΡΠ½ΠΊΡΠΈΠΎΠ½Π°Π»ΡΠ½Π°Ρ ΠΌΠ΅Π±Π΅Π»Ρ, ΠΌΠ½ΠΎΠΆΠ΅ΡΡΠ²ΠΎ ΠΎΡΠ²Π΅ΡΠΈΡΠ΅Π»ΡΠ½ΡΡ ΠΏΡΠΈΠ±ΠΎΡΠΎΠ² ΠΈ ΠΌΠΈΠ½ΠΈΠΌΡΠΌ Π΄Π΅ΠΊΠΎΡΠ°.
Β

Β

Β

Β

Β

Β

Β

Β
Π’Π°ΠΊΠΈΠΌ ΠΎΠ±ΡΠ°Π·ΠΎΠΌ, Π·Π°Π΄Π°ΡΠ° ΠΎΡΠΎΡΠΌΠΈΡΡ ΠΊΡΠ°ΡΠΈΠ²ΡΠΉ, ΡΡΡΠ½ΡΠΉ ΠΈ ΡΡΠ½ΠΊΡΠΈΠΎΠ½Π°Π»ΡΠ½ΡΠΉ Π΄ΠΈΠ·Π°ΠΉΠ½ ΠΊΠ²Π°ΡΡΠΈΡΡ β ΡΡΡΠ΄ΠΈΠΈ Ρ ΠΎΠ΄Π½ΠΈΠΌ ΠΎΠΊΠ½ΠΎΠΌ Π²ΠΏΠΎΠ»Π½Π΅ Π²ΡΠΏΠΎΠ»Π½ΠΈΠΌΠ° ΠΈ Π²ΡΠ·ΡΠ²Π°Π΅Ρ Π±ΠΎΠ»ΡΡΠΎΠΉ ΠΈΠ½ΡΠ΅ΡΠ΅Ρ Ρ ΠΌΠΎΠ»ΠΎΠ΄ΡΡ ΠΊΡΠ΅Π°ΡΠΈΠ²Π½ΡΡ Π΄ΠΈΠ·Π°ΠΉΠ½Π΅ΡΠΎΠ².
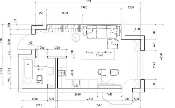
ΠΠΈΠ·Π°ΠΉΠ½ ΠΊΠ²Π°ΡΡΠΈΡΡ-ΡΡΡΠ΄ΠΈΠΈ ΠΏΡΡΠΌΠΎΡΠ³ΠΎΠ»ΡΠ½ΠΎΠΉ ΠΏΠ»Π°Π½ΠΈΡΠΎΠ²ΠΊΠΈ
ΠΡΡΠΌΠΎΡΠ³ΠΎΠ»ΡΠ½Π°Ρ ΠΏΠ»Π°Π½ΠΈΡΠΎΠ²ΠΊΠ° ΠΊΠ²Π°ΡΡΠΈΡΡ-ΡΡΡΠ΄ΠΈΠΈ ΠΎΠ±ΡΡΠ½ΠΎ ΡΡΠ΅Π±ΡΠ΅Ρ ΠΏΡΠΈΠΌΠ΅Π½Π΅Π½ΠΈΡ ΡΠΏΠ΅ΡΠΈΠ°Π»ΡΠ½ΡΡ ΠΌΠ΅ΡΠΎΠ΄ΠΎΠ² ΠΈ ΠΏΡΠΈΠ΅ΠΌΠΎΠ² Π΄Π»Ρ ΡΠ°ΡΠΈΠΎΠ½Π°Π»ΡΠ½ΠΎΠ³ΠΎ ΠΎΠ±ΡΡΡΡΠΎΠΉΡΡΠ²Π° ΠΈ Π²ΠΈΠ·ΡΠ°Π»ΡΠ½ΠΎΠΉ ΠΊΠΎΡΡΠ΅ΠΊΡΠΈΠΈ ΠΏΡΠΎΡΡΡΠ°Π½ΡΡΠ²Π°. ΠΡΠΎΠ±Π΅Π½Π½ΠΎ ΡΡΠΎ ΠΊΠ°ΡΠ°Π΅ΡΡΡ ΡΠ·ΠΊΠΈΡ ΠΈ Π΄Π»ΠΈΠ½Π½ΡΡ ΠΆΠΈΠ»ΡΡ ΠΏΠΎΠΌΠ΅ΡΠ΅Π½ΠΈΠΉ ΡΠΎ Π²Ρ ΠΎΠ΄ΠΎΠΌ ΠΈ ΠΎΠΊΠ½ΠΎΠΌ Π½Π° ΠΏΡΠΎΡΠΈΠ²ΠΎΠΏΠΎΠ»ΠΎΠΆΠ½ΡΡ ΠΊΠΎΡΠΎΡΠΊΠΈΡ ΡΡΠ΅Π½Π°Ρ . ΠΠΈΠΆΠ΅ ΠΏΡΠΈΠ²Π΅Π΄Π΅Π½Ρ ΠΏΡΠΎΠ΅ΠΊΡΡ Π΄ΠΈΠ·Π°ΠΉΠ½Π° ΠΈΠ½ΡΠ΅ΡΡΠ΅ΡΠ° ΠΊΠ²Π°ΡΡΠΈΡ-ΡΡΡΠ΄ΠΈΠΉ Π²ΡΡΡΠ½ΡΡΠΎΠΉ ΡΠΎΡΠΌΡ.βͺΒ ΠΠΈΠΊΡΠΎ-ΠΊΠ²Π°ΡΡΠΈΡΠ° 9 ΠΌ Ρ Π²ΡΡΠΎΠΊΠΈΠΌ ΠΏΠΎΠ΄ΠΈΡΠΌΠΎΠΌ
βͺΒ 3D Π΄ΠΈΠ·Π°ΠΉΠ½ ΡΡΡΠ΄ΠΈΠΈ ΠΎΡ Svensk Fastighetsformedling
βͺΒ 3D Π΄ΠΈΠ·Π°ΠΉΠ½ ΠΊΠ²Π°ΡΡΠΈΡΡ ΠΎΡ ΠΠΠ
βͺΒ 3D Π΄ΠΈΠ·Π°ΠΉΠ½ ΡΡΡΠ΄ΠΈΠΈ Π² ΠΠ°Π½Π³ΠΊΠΎΠΊΠ΅ / Π’Π°ΠΈΠ»Π°Π½Π΄
βͺΒ ΠΠ°Π»ΠΎΠ³Π°Π±Π°ΡΠΈΡΠ½Π°Ρ ΠΊΠ²Π°ΡΡΠΈΡΠ°-ΡΡΡΠ΄ΠΈΡ: ΡΡΠ°ΡΡΠ»ΠΈΠ²ΡΠ΅ 13 ΠΌΠ΅ΡΡΠΎΠ²
βͺΒ Π―ΡΠΊΠΈΠΉ ΠΏΡΠΎΠ΅ΠΊΡ ΠΌΠ°Π»Π΅Π½ΡΠΊΠΎΠΉ ΠΊΠ²Π°ΡΡΠΈΡΡ-Π³ΠΎΡΡΠΈΠ½ΠΊΠΈ 15 ΠΌ / 3D
βͺΒ ΠΡΠΎΠ΅ΠΊΡ Π½Π΅Π±ΠΎΠ»ΡΡΠΎΠΉ ΡΡΡΠ΄ΠΈΠΈ 16 ΠΌ Π² ΡΡΠΈΠ»Π΅ ΠΌΠΈΠ½ΠΈΠΌΠ°Π»ΠΈΠ·ΠΌ / 3D
βͺΒ ΠΠΎΠ½ΡΠ΅ΠΏΡ ΠΌΠ°Π»Π΅Π½ΡΠΊΠΎΠΉ ΡΡΡΠ΄ΠΈΠΈ 16 ΠΌ Π² ΡΡΠΈΠ»Π΅ Π½Π΅ΠΎΠΊΠ»Π°ΡΡΠΈΠΊΠ° / 3D
βͺΒ ΠΠΈΠ·Π°ΠΉΠ½ ΠΌΠ°Π»Π΅Π½ΡΠΊΠΎΠΉ ΠΊΠ²Π°ΡΡΠΈΡΡ-ΡΡΡΠ΄ΠΈΠΈ 18 ΠΌ
βͺΒ ΠΠ΅ΠΊΠΎΡΠ°ΡΠΈΠ²Π½ΡΠΉ ΠΊΠ°ΠΌΠ΅Π½Ρ Π² ΠΈΠ½ΡΠ΅ΡΡΠ΅ΡΠ΅ ΠΊΠ²Π°ΡΡΠΈΡΡ 18 ΠΌ
βͺΒ ΠΠ°Π»Π΅Π½ΡΠΊΠ°Ρ ΠΊΠ²Π°ΡΡΠΈΡΠ° 19 ΠΌ Ρ ΠΊΡΠΎΠ²Π°ΡΡΡ-Π³Π°ΡΠ΄Π΅ΡΠΎΠ±ΠΎΠΌ
βͺΒ ΠΡΠΎΠ΅ΠΊΡ ΠΌΠ°Π»Π΅Π½ΡΠΊΠΎΠΉ ΡΡΡΠ΄ΠΈΠΈ 19 ΠΌ Ρ ΠΏΡΠΈΡΠΎΠ΅Π΄ΠΈΠ½Π΅Π½Π½ΠΎΠΉ Π»ΠΎΠ΄ΠΆΠΈΠ΅ΠΉ / 3D
βͺΒ ΠΠ΅Π»ΠΎΡΠ½Π΅ΠΆΠ½ΡΠΉ ΠΈΠ½ΡΠ΅ΡΡΠ΅Ρ ΠΌΠ°Π»ΠΎΠΌΠ΅ΡΡΠ°ΠΆΠ½ΠΎΠΉ ΠΊΠ²Π°ΡΡΠΈΡΡ 20 ΠΌ
βͺΒ ΠΠ°Π»ΠΎΠ³Π°Π±Π°ΡΠΈΡΠ½Π°Ρ ΡΠΊΠ°Π½Π΄ΠΈΠ½Π°Π²ΡΠΊΠ°Ρ ΠΊΠ²Π°ΡΡΠΈΡΠ°-ΡΡΡΠ΄ΠΈΡ 20 ΠΌ
βͺΒ ΠΠ²Π°ΡΡΠΈΡΠ°-ΡΡΡΠ΄ΠΈΡ 20 ΠΌ Ρ Π²Π½ΡΡΡΠ΅Π½Π½ΠΈΠΌ Π΄Π²ΠΎΡΠΈΠΊΠΎΠΌ Π½Π° ΠΠΎΠ½ΠΌΠ°ΡΡΡΠ΅
βͺΒ ΠΠ²ΡΡ ΡΡΠΎΠ²Π½Π΅Π²Π°Ρ ΠΊΠ²Π°ΡΡΠΈΡΠ° 20 + 12 ΠΌ Π² Π‘ΡΠΎΠΊΠ³ΠΎΠ»ΡΠΌΠ΅
βͺΒ ΠΠ°Π»ΠΎΠΌΠ΅ΡΡΠ°ΠΆΠ½ΡΠ΅ Π°ΠΏΠ°ΡΡΠ°ΠΌΠ΅Π½ΡΡ 21 ΠΌ Ρ ΠΊΡΡ Π½Π΅ΠΉ Π½Π° Π΄Π²Π΅ ΡΡΠΎΡΠΎΠ½Ρ
βͺΒ ΠΠ°Π»Π΅Π½ΡΠΊΠ°Ρ ΡΡΡΠ΄ΠΈΡ 22 ΠΌ Π² Π¨Π²Π΅ΡΠΈΠΈ
βͺΒ ΠΠ½ΡΠ΅ΡΡΠ΅Ρ ΠΌΠ°Π»ΠΎΠΌΠ΅ΡΡΠ°ΠΆΠ½ΠΎΠΉ ΠΊΠ²Π°ΡΡΠΈΡΡ-ΡΡΡΠ΄ΠΈΠΈ 22 ΠΌ
βͺΒ ΠΠ°Π»Π΅Π½ΡΠΊΠ°Ρ ΠΊΠ²Π°ΡΡΠΈΡΠ°-ΡΡΡΠ΄ΠΈΡ 22 ΠΌ Π² ΠΠΎΠ½Π΄ΠΎΠ½Π΅
βͺΒ ΠΠ²Π°ΡΡΠΈΡΠ°-ΡΡΡΠ΄ΠΈΡ 23 ΠΌ Ρ ΠΊΡΡ Π½Π΅ΠΉ-ΠΏΡΠΈΡ ΠΎΠΆΠ΅ΠΉ
βͺΒ ΠΠΈΠ·Π°ΠΉΠ½ ΠΌΠ°Π»Π΅Π½ΡΠΊΠΎΠΉ ΠΊΠ²Π°ΡΡΠΈΡΡ 23 ΠΌ Π² ΡΡΠΈΠ»Π΅ ΠΏΡΠΎΠ²Π°Π½Ρ
βͺΒ Π‘ΠΊΠ°Π½Π΄ΠΈΠ½Π°Π²ΡΠΊΠΈΠΉ Π»ΠΎΡΡ: ΠΏΡΠΎΠ΅ΠΊΡ ΠΊΡΡΠΎΡΡΠ½ΠΎΠΉ ΡΡΡΠ΄ΠΈΠΈ 24 ΠΌ / 3D
βͺΒ ΠΠΏΠ°ΡΡΠ°ΠΌΠ΅Π½ΡΡ 25 ΠΌ Ρ Π½Π΅Π±ΠΎΠ»ΡΡΠΎΠΉ ΠΎΡΠ΄Π΅Π»ΡΠ½ΠΎΠΉ ΠΊΡΡ Π½Π΅ΠΉ
βͺΒ ΠΠΈΠ·Π°ΠΉΠ½-ΠΏΡΠΎΠ΅ΠΊΡ ΠΊΠ²Π°ΡΡΠΈΡΡ 25 ΠΌ ΡΠΎ ΡΡΠ΅ΠΊΠ»ΡΠ½Π½ΠΎΠΉ ΠΏΠ΅ΡΠ΅Π³ΠΎΡΠΎΠ΄ΠΊΠΎΠΉ / 3D
βͺΒ ΠΠ΅Π±ΠΎΠ»ΡΡΠ°Ρ ΠΊΠ²Π°ΡΡΠΈΡΠ° ΠΎΡΠΊΡΡΡΠΎΠ³ΠΎ ΠΏΠ»Π°Π½Π° 25 ΠΌ
βͺΒ ΠΠΈΠ·Π°ΠΉΠ½-ΠΏΡΠΎΠ΅ΠΊΡ ΡΡΡΠ΄ΠΈΠΈ 25 ΠΌ Ρ Π²Π½ΡΡΡΠ΅Π½Π½ΠΈΠΌ ΠΎΠΊΠ½ΠΎΠΌ / 3D
βͺΒ Π―ΠΏΠΎΠ½ΡΠΊΠΈΠ΅ ΡΡΠΎΡΡ Π² ΠΈΠ½ΡΠ΅ΡΡΠ΅ΡΠ΅ ΡΡΡΠ΄ΠΈΠΈ 26 ΠΌ
βͺΒ Π‘ΡΡΠ΄ΠΈΠΉΠ½Π°Ρ ΠΊΠ²Π°ΡΡΠΈΡΠ° 26 ΠΌ Ρ ΠΌΠ΅Π±Π΅Π»ΡΡ ΠΠΠΠ
βͺΒ ΠΡΠΎΠ΅ΠΊΡ ΡΡΡΠ΄ΠΈΠΈ 26 ΠΌ Ρ Π·ΠΎΠ½ΠΈΡΠΎΠ²Π°Π½ΠΈΠ΅ΠΌ ΠΊΠΎΠΌΠ½Π°ΡΡ ΡΠΊΠ°ΡΠΎΠΌ / 3D
βͺΒ 3 ΡΠ²Π΅ΡΠ° Π΄Π»Ρ Π·ΠΎΠ½ΠΈΡΠΎΠ²Π°Π½ΠΈΡ ΡΡΡΠ΄ΠΈΠΈ 27 ΠΌ Π² Π‘ΠΈΠ΄Π½Π΅Π΅
βͺΒ ΠΠΎΡΡΠ΅Π²Π°Ρ ΠΊΠ²Π°ΡΡΠΈΡΠ°-ΡΡΡΠ΄ΠΈΡ 27 ΠΌ Ρ ΠΊΠ°ΡΡΠΈΠ½ΠΎΠΉ Π½Π° ΠΏΠΎΡΠΎΠ»ΠΊΠ΅
βͺΒ ΠΠ»ΠΈΠ½Π½Π°Ρ ΡΠ·ΠΊΠ°Ρ ΠΊΠ²Π°ΡΡΠΈΡΠ°-ΡΡΡΠ΄ΠΈΡ 27 ΠΌ
βͺΒ ΠΠΎΠ±ΠΈΠ»ΡΠ½ΡΠΉ Π΄ΠΎΠΌ-ΡΡΡΠ΄ΠΈΡ 27 ΠΌ
βͺΒ ΠΠ΅ΡΡΠΈΠΊΠ°Π»ΡΠ½ΠΎΠ΅ Π·ΠΎΠ½ΠΈΡΠΎΠ²Π°Π½ΠΈΠ΅ ΠΊΠ²Π°ΡΡΠΈΡΡ-ΡΡΡΠ΄ΠΈΠΈ 28 ΠΌ
βͺΒ ΠΠ½ΡΠ΅ΡΡΠ΅Ρ ΡΡΡΠ΄ΠΈΠΈ 28 ΠΌ Π² Π‘ΡΠΎΠΊΠ³ΠΎΠ»ΡΠΌΠ΅ / Π¨Π²Π΅ΡΠΈΡ
βͺΒ ΠΠ²Π°ΡΡΠΈΡΠ°-ΡΡΡΠ΄ΠΈΡ 28 ΠΌ Ρ ΠΏΠΎΠ»Π½ΠΎΠΉ ΠΎΠ±ΡΡΠ°Π½ΠΎΠ²ΠΊΠΎΠΉ ΠΎΡ ΠΠΠΠ
βͺΒ ΠΠ²Π°ΡΡΠΈΡΠ° 28 ΠΌ Ρ Π²Π΅ΡΡΠΈΠΊΠ°Π»ΡΠ½ΠΎΠΉ ΠΏΠΎΠ΄ΡΠ΅ΠΌΠ½ΠΎΠΉ ΠΊΡΠΎΠ²Π°ΡΡΡ
βͺΒ Π‘ΠΎΠ²ΡΠ΅ΠΌΠ΅Π½Π½ΡΠΉ ΠΊΠΎΠ½ΡΠ΅ΠΏΡ ΡΡΡΠ΄ΠΈΠΈ 28 ΠΌ ΡΠΎ ΡΠΊΠ°ΡΠΎΠΌ-ΠΏΠ΅ΡΠ΅Π³ΠΎΡΠΎΠ΄ΠΊΠΎΠΉ / 3D
βͺΒ ΠΠ²Π°ΡΡΠΈΡΠ° ΠΏΠΎΠ΄ Π»ΠΎΡΡ 28 ΠΌ Ρ ΠΊΡΠΎΠ²Π°ΡΡΡ-ΡΠ΅ΡΠ΄Π°ΠΊΠΎΠΌ
βͺΒ ΠΠΈΠ·Π°ΠΉΠ½ ΡΡΡΠ΄ΠΈΠΈ 28 ΠΌ Π² ΠΠ°Π½Π½Π°Ρ
βͺΒ ΠΠΈΠ½ΠΈΠΌΠ°Π»ΠΈΡΡΠΈΡΠ½ΡΠΉ ΠΏΡΠΎΠ΅ΠΊΡ ΡΡΡΠ΄ΠΈΠΈ 29 ΠΌ Ρ Π΄Π΅ΠΊΠΎΡΠ°ΡΠΈΠ²Π½ΠΎΠΉ ΠΏΠ΅ΡΠ΅Π³ΠΎΡΠΎΠ΄ΠΊΠΎΠΉ / 3D
βͺΒ ΠΠΈΠ·ΡΠ°Π»ΠΈΠ·Π°ΡΠΈΡ ΠΈΠ½ΡΠ΅ΡΡΠ΅ΡΠ° ΡΡΡΠ΄ΠΈΠΈ 29 ΠΌ Ρ ΡΠ»Π΅ΠΌΠ΅Π½ΡΠ°ΠΌΠΈ Π»ΠΎΡΡΠ° / 3D
βͺΒ ΠΠΈΠ»Π°Ρ ΠΌΠ°ΡΡΠ΅ΡΡΠΊΠ°Ρ 30 ΠΌ Ρ ΠΌΠΎΠ±ΠΈΠ»ΡΠ½ΠΎΠΉ Π°ΡΠΎΡΠ½ΠΎΠΉ ΠΏΠ΅ΡΠ΅Π³ΠΎΡΠΎΠ΄ΠΊΠΎΠΉ
βͺΒ Π€ΡΠ°Π½ΡΡΠ·ΡΠΊΠ°Ρ ΡΡΡΠ΄ΠΈΡ 30 ΠΌ Ρ ΡΠ°ΡΡΠΈΡΠ½ΠΎ ΠΎΡΠ³ΠΎΡΠΎΠΆΠ΅Π½Π½ΠΎΠΉ ΠΊΡΡ Π½Π΅ΠΉ
βͺΒ ΠΠ²Π°ΡΡΠΈΡΠ° ΡΡΡΠ΄ΠΈΠΉΠ½ΠΎΠ³ΠΎ ΡΠΈΠΏΠ° 30 ΠΌ Ρ ΠΎΠΊΠ½ΠΎΠΌ Π½Π° ΠΏΠΎΡΠΎΠ»ΠΊΠ΅
βͺΒ ΠΡΡΠΌΠΎΡΠ³ΠΎΠ»ΡΠ½Π°Ρ ΡΡΡΠ΄ΠΈΡ 30 ΠΌ Ρ ΠΌΠΈΠ½ΠΈ-ΠΊΡΡ Π½Π΅ΠΉ
βͺΒ Π‘ΠΎΠ²ΡΠ΅ΠΌΠ΅Π½Π½ΡΠΉ ΠΏΡΠΎΠ΅ΠΊΡ ΡΡΡΠ΄ΠΈΠΈ 30 ΠΌ Ρ ΡΠ°Π·Π²ΠΎΡΠΎΡΠΎΠΌ ΠΊΡΡ Π½ΠΈ / 3D
βͺΒ ΠΠΈΠ·Π°ΠΉΠ½ ΠΊΠ²Π°ΡΡΠΈΡΡ 30 ΠΌ Π² Π‘ΡΠΎΠΊΠ³ΠΎΠ»ΡΠΌΠ΅
βͺΒ ΠΠ΅Π»Π΅Π½Π°Ρ ΡΡΡΠ΄ΠΈΡ 30 ΠΌ Π΄Π»Ρ ΡΠ°Π·ΠΌΠ΅ΡΠ΅Π½ΠΈΡ Π³ΠΎΡΡΠ΅ΠΉ
βͺΒ ΠΡΠ°ΡΠ½Π°Ρ ΡΡΡΠ΄ΠΈΡ 30 ΠΌ Π΄Π»Ρ ΠΏΡΠΎΠΆΠΈΠ²Π°Π½ΠΈΡ Π³ΠΎΡΡΠ΅ΠΉ
βͺΒ ΠΠΈΠ·Π°ΠΉΠ½ ΡΡΡΠ΄ΠΈΠΈ 30 ΠΌ Π² ΠΠΈΡΡΠ°Π±ΠΎΠ½Π΅
βͺΒ ΠΠ²Π°ΡΡΠΈΡΠ° ΠΎΡΠΊΡΡΡΠΎΠΉ ΠΏΡΡΠΌΠΎΡΠ³ΠΎΠ»ΡΠ½ΠΎΠΉ ΠΏΠ»Π°Π½ΠΈΡΠΎΠ²ΠΊΠΈ 30 ΠΌ
βͺΒ ΠΡΠ΄ΠΆΠ΅ΡΠ½ΡΠΉ ΡΠ΅ΠΌΠΎΠ½Ρ ΡΠΈΠΏΠΎΠ²ΠΎΠΉ ΠΊΠ²Π°ΡΡΠΈΡΡ-ΡΡΡΠ΄ΠΈΠΈ 31 ΠΌ
βͺΒ ΠΠΎΠ½ΠΈΡΠΎΠ²Π°Π½ΠΈΠ΅ ΠΊΠ²Π°ΡΡΠΈΡΡ-ΡΡΡΠ΄ΠΈΠΈ 31 ΠΌ ΡΡΠΎΡΠ°ΠΌΠΈ
βͺΒ Π‘ΡΡΠ΄ΠΈΡ ΠΏΡΡΠΌΠΎΡΠ³ΠΎΠ»ΡΠ½ΠΎΠΉ ΡΠΎΡΠΌΡ 31 ΠΌ Ρ ΠΎΡΠ΄Π΅Π»ΡΠ½ΠΎΠΉ ΠΊΡΡ Π½Π΅ΠΉ
βͺΒ ΠΠΈΠ»Π°Ρ ΡΡΡΠ΄ΠΈΡ Π΄ΠΈΠ·Π°ΠΉΠ½Π΅ΡΠ° 32 ΠΌ Ρ ΡΠ΅ΡΠ½ΡΠΌΠΈ ΡΡΠ΅Π½Π°ΠΌΠΈ
βͺΒ ΠΠ½ΡΠ΅ΡΡΠ΅Ρ Π΄Π»ΠΈΠ½Π½ΠΎΠΉ ΡΡΡΠ΄ΠΈΠΈ 32 ΠΌ Ρ ΠΎΠ΄Π½ΠΈΠΌ ΠΎΠΊΠ½ΠΎΠΌ
βͺΒ ΠΠ½Π³Π»ΠΈΠΉΡΠΊΠ°Ρ ΡΡΡΠ΄ΠΈΡ 32 ΠΌ Ρ ΠΌΠΈΠ½ΠΈ-ΡΠΏΠ°Π»ΡΠ½Π΅ΠΉ
βͺΒ ΠΡΠ°ΡΠ½ΠΎ-ΡΠ΅ΡΡΠΉ ΠΈΠ½ΡΠ΅ΡΡΠ΅Ρ ΠΊΠ²Π°ΡΡΠΈΡΡ 32 ΠΌ
βͺΒ ΠΠ΅ΡΠ΅Π΄Π²ΠΈΠΆΠ½ΠΎΠΉ Π΄ΠΎΠΌ-ΡΡΡΠ΄ΠΈΡ 33 ΠΌ
βͺΒ ΠΠ½ΡΠ΅ΡΡΠ΅Ρ ΠΏΡΡΠΌΠΎΡΠ³ΠΎΠ»ΡΠ½ΠΎΠΉ ΠΊΠ²Π°ΡΡΠΈΡΡ-ΡΡΡΠ΄ΠΈΠΈ 33 ΠΌ
βͺΒ ΠΠ²Π°ΡΡΠΈΡΠ° 33 ΠΌ Ρ ΠΎΡΠΊΠΈΠ΄Π½ΠΎΠΉ ΠΊΡΠΎΠ²Π°ΡΡΡ-ΡΡΠΎΠ»ΠΎΠΌ
βͺΒ ΠΠ²Π°ΡΡΠΈΡΠ° ΠΏΡΡΠΌΠΎΡΠ³ΠΎΠ»ΡΠ½ΠΎΠΉ ΡΡΡΠ΄ΠΈΠΉΠ½ΠΎΠΉ ΠΏΠ»Π°Π½ΠΈΡΠΎΠ²ΠΊΠΈ 33 ΠΌ
βͺΒ Π‘ΠΎΠ²ΡΠ΅ΠΌΠ΅Π½Π½Π°Ρ ΡΡΡΠ΄ΠΈΡ 33 ΠΌ Ρ ΠΏΠΎΠ΄ΡΠ΅ΠΌΠ½ΠΎΠΉ ΠΊΡΠΎΠ²Π°ΡΡΡ-ΡΡΠΎΠ»ΠΎΠΌ
βͺΒ Π‘Π²Π΅ΡΠ»ΡΠΉ ΠΈΠ½ΡΠ΅ΡΡΠ΅Ρ ΠΊΠ²Π°ΡΡΠΈΡΡ ΠΎΡΠΊΡΡΡΠΎΠ³ΠΎ ΠΏΠ»Π°Π½Π° 34 ΠΌ
βͺΒ Π‘ΠΎΠ²ΡΠ΅ΠΌΠ΅Π½Π½ΡΠΉ ΠΈΠ½ΡΠ΅ΡΡΠ΅Ρ ΡΡΡΠ΄ΠΈΠΉΠ½ΠΎΠΉ ΠΊΠ²Π°ΡΡΠΈΡΡ 34 ΠΌ
βͺΒ ΠΡΠΎΠ΅ΠΊΡ Π°ΠΏΠ°ΡΡΠ°ΠΌΠ΅Π½ΡΠΎΠ² 35 ΠΌ Π² ΡΠΎΠ²ΡΠ΅ΠΌΠ΅Π½Π½ΠΎΠΌ ΡΡΠΈΠ»Π΅ / 3D
βͺΒ ΠΠΎΠ½ΡΠ΅ΠΏΡ Π°ΠΏΠ°ΡΡΠ°ΠΌΠ΅Π½ΡΠΎΠ² 35 ΠΌ Π² ΡΠΊΠ°Π½Π΄ΠΈΠ½Π°Π²ΡΠΊΠΎΠΌ ΡΡΠΈΠ»Π΅ / 3D
βͺΒ ΠΠΎΠ½ΡΠ΅ΠΏΡΠΈΡ Π°ΠΏΠ°ΡΡΠ°ΠΌΠ΅Π½ΡΠΎΠ² 35 ΠΌ Π² ΡΡΠΈΠ»Π΅ Ρ Π°ΠΉ-ΡΠ΅ΠΊ / 3D
βͺΒ ΠΠΎΠ²Π°Ρ ΠΊΠ²Π°ΡΡΠΈΡΠ°-ΡΡΡΠ΄ΠΈΡ 35 ΠΌ Ρ Π±ΠΎΠ»ΡΡΠΈΠΌ Π±Π°Π»ΠΊΠΎΠ½ΠΎΠΌ
βͺΒ Π‘ΡΠ΅ΠΊΠ»ΠΎΠ±Π»ΠΎΠΊΠΈ Π² ΠΈΠ½ΡΠ΅ΡΡΠ΅ΡΠ΅ ΠΊΠ²Π°ΡΡΠΈΡΡ 35 ΠΌ
βͺΒ ΠΠΈΠ·Π°ΠΉΠ½ ΡΠ·ΠΊΠΎΠΉ ΠΊΠ²Π°ΡΡΠΈΡΡ-ΡΡΡΠ΄ΠΈΠΈ 35 ΠΌ Π² ΠΠΎΠ½ΠΊΠΎΠ½Π³Π΅
βͺΒ ΠΠ²Π°ΡΡΠΈΡΠ° 35 ΠΌ Π½Π° ΠΌΠ°Π½ΡΠ°ΡΠ΄Π½ΠΎΠΌ ΡΡΠ°ΠΆΠ΅
βͺΒ ΠΠΈΠ·Π°ΠΉΠ½ ΡΡΡΠ΄ΠΈΠΈ 35 ΠΌ Π²ΠΎ Π€ΡΠ°Π½ΡΠΈΠΈ
βͺΒ CΡΡΠ΄ΠΈΡ Ρ Π°Π»ΡΠΊΠΎΠ²ΠΎΠΌ 35 ΠΌ Π² Π‘ΡΠΎΠΊΠ³ΠΎΠ»ΡΠΌΠ΅
βͺΒ ΠΠ΄Π½ΠΎΠΊΠΎΠΌΠ½Π°ΡΠ½Π°Ρ ΠΊΠ²Π°ΡΡΠΈΡΠ° ΠΈΠ· ΠΏΡΡΠΌΠΎΡΠ³ΠΎΠ»ΡΠ½ΠΎΠΉ ΡΡΡΠ΄ΠΈΠΈ 36 ΠΌ — Π²Π°ΡΠΈΠ°Π½Ρ 1 / 3D
βͺΒ ΠΠ΄Π½ΠΎΠΊΠΎΠΌΠ½Π°ΡΠ½Π°Ρ ΠΊΠ²Π°ΡΡΠΈΡΠ° ΠΈΠ· ΠΏΡΡΠΌΠΎΡΠ³ΠΎΠ»ΡΠ½ΠΎΠΉ ΡΡΡΠ΄ΠΈΠΈ 36 ΠΌ — Π²Π°ΡΠΈΠ°Π½Ρ 2 / 3D
βͺΒ ΠΠ½ΡΠ΅ΡΡΠ΅Ρ ΠΊΠ²Π°ΡΡΠΈΡΡ 36 ΠΌ Π² Π‘Π°Π»Π²Π°Π΄ΠΎΡΠ΅ / ΠΡΠ°Π·ΠΈΠ»ΠΈΡ
βͺΒ Π‘ΡΡΠ΄ΠΈΡ 36 ΠΌ Π² Π‘ΡΠΎΠΊΠ³ΠΎΠ»ΡΠΌΠ΅ / Π¨Π²Π΅ΡΠΈΡ
βͺΒ ΠΠ²Π°ΡΡΠΈΡΠ° 36 ΠΌ Π² ΠΠΎΠ½Π΄ΠΎΠ½Π΅ / ΠΠ½Π³Π»ΠΈΡ
βͺΒ ΠΠ΅Π»ΡΠ΅ ΡΡΠ΅Π½Ρ ΠΈ ΠΏΠΎΠ» Π² ΠΊΠ²Π°ΡΡΠΈΡΠ΅-ΡΡΡΠ΄ΠΈΠΈ 36 ΠΌ
βͺΒ Π―ΡΠΊΠ°Ρ ΡΡΡΠ΄ΠΈΡ 37 ΠΌ Ρ ΠΏΠ΅ΡΠ΅Π³ΠΎΡΠΎΠ΄ΠΊΠΎΠΉ ΠΈΠ· ΠΌΠ΅Π±Π΅Π»ΠΈ
βͺΒ Π‘ΠΎΠ²ΡΠ΅ΠΌΠ΅Π½Π½ΡΠΉ ΠΈΠ½ΡΠ΅ΡΡΠ΅Ρ ΠΊΠ²Π°ΡΡΠΈΡΡ 37 ΠΌ Ρ ΠΌΠ΅Π±Π΅Π»ΡΡ ΠΈΠ· ΡΠ°Π½Π΅ΡΡ
βͺΒ ΠΠΎΡΡ 38 ΠΌ Π² ΠΡΡΠ΅Π±ΠΎΡΠ³Π΅ / Π¨Π²Π΅ΡΠΈΡ
βͺΒ ΠΠ½ΡΠ΅ΡΡΠ΅Ρ ΡΡΡΠ΄ΠΈΠΈ 39 ΠΌ Π² ΠΡΡΠ΅Π±ΠΎΡΠ³Π΅ / Π¨Π²Π΅ΡΠΈΡ
βͺΒ Π‘ΡΡΠ΄ΠΈΡ 40 ΠΌ Π² ΠΠ΅ΡΡΠ΅ / ΠΠ²ΡΡΡΠ°Π»ΠΈΡ
βͺΒ ΠΠΈΠ·Π°ΠΉΠ½ ΠΊΠ²Π°ΡΡΠΈΡΡ 40 ΠΌ Π² ΠΠ΅ΡΡΠ΅ / ΠΠ²ΡΡΡΠ°Π»ΠΈΡ
βͺΒ ΠΠΈΠ»Π°Ρ ΡΡΡΠ΄ΠΈΡ 42 ΠΌ Π½Π° Π±ΡΠ²ΡΠ΅ΠΉ ΡΠ°Π±ΡΠΈΠΊΠ΅ ΠΌΠΎΡΠΎΠΆΠ΅Π½ΠΎΠ³ΠΎ
βͺΒ Π Π°Π·Π΄Π²ΠΈΠΆΠ½ΡΠ΅ ΠΏΠ΅ΡΠ΅Π³ΠΎΡΠΎΠ΄ΠΊΠΈ Π΄Π»Ρ Π·ΠΎΠ½ΠΈΡΠΎΠ²Π°Π½ΠΈΡ ΠΊΠ²Π°ΡΡΠΈΡΡ 42 ΠΌ
βͺΒ ΠΠΈΠ·Π°ΠΉΠ½ ΡΡΡΠ΄ΠΈΠΈ 43 ΠΌ Π² Π‘ΡΠΎΠΊΠ³ΠΎΠ»ΡΠΌΠ΅ / Π¨Π²Π΅ΡΠΈΡ
βͺΒ ΠΠ²Π°ΡΡΠΈΡΠ°-ΡΠ΅ΡΠ΄Π°ΠΊ 44 ΠΌ Ρ Π΄ΡΠΎΠ²ΡΠ½ΡΠΌ ΠΊΠ°ΠΌΠΈΠ½ΠΎΠΌ
βͺΒ Π‘ΡΡΠ΄ΠΈΡ 45 ΠΌ Π² ΠΠΎΠ½Π΄ΠΎΠ½Π΅ / ΠΠ΅Π»ΠΈΠΊΠΎΠ±ΡΠΈΡΠ°Π½ΠΈΡ
βͺΒ ΠΡΠΎΡΡΠΎΡΠ½Π°Ρ ΡΡΡΠ΄ΠΈΡ 45 ΠΌ Ρ ΠΎΡΠ³ΠΎΡΠΎΠΆΠ΅Π½Π½ΠΎΠΉ ΡΠΏΠ°Π»ΡΠ½Π΅ΠΉ
βͺΒ ΠΠ²Π°ΡΡΠΈΡΠ°-ΡΡΡΠ΄ΠΈΡ 48 ΠΌ Ρ ΠΏΠ°ΡΠΈΠΎ Π² ΠΠ΅Π½Π΅Π²Π΅
βͺΒ ΠΠΈΠ·Π°ΠΉΠ½ ΠΏΡΠΎΡΡΠΎΡΠ½ΠΎΠΉ ΠΊΠ²Π°ΡΡΠΈΡΡ 48 ΠΌ Ρ ΡΡΠΊΠ΅ΡΠΎΠΌ
βͺΒ ΠΠ²ΡΡ ΡΡΠΎΠ²Π½Π΅Π²Π°Ρ ΡΡΡΠ΄ΠΈΡ 60 ΠΌ Π² Π’Π°ΠΈΠ»Π°Π½Π΄Π΅
βͺΒ ΠΠΈΠ·Π°ΠΉΠ½ ΠΊΠ²Π°ΡΡΠΈΡΡ 70 ΠΌ Π² ΠΡΡ-ΠΠΎΡΠΊΠ΅
βͺΒ ΠΠ½ΡΠ΅ΡΡΠ΅Ρ ΠΊΠ²Π°ΡΡΠΈΡΡ 72 ΠΌ Π² ΠΡΡ-ΠΠΎΡΠΊΠ΅
βͺΒ ΠΠΈΠ·Π°ΠΉΠ½ ΡΡΡΠ΄ΠΈΠΈ 73 ΠΌ Π½Π° ΠΠ°Π½Ρ ΡΡΡΠ΅Π½Π΅
β ΠΠ²Π°ΡΡΠΈΡΡ-ΡΡΡΠ΄ΠΈΠΈ ΠΊΠ²Π°Π΄ΡΠ°ΡΠ½ΠΎΠΉ ΠΏΠ»Π°Π½ΠΈΡΠΎΠ²ΠΊΠΈ
Π‘ΠΎΠ΄Π΅ΡΠΆΠ°Π½ΠΈΠ΅:
- ΠΠ½ΡΠ΅ΡΡΠ΅Ρ ΡΡΡΠ΄ΠΈΠΈ Ρ ΠΎΠ΄Π½ΠΈΠΌ ΠΎΠΊΠ½ΠΎΠΌ
- ΠΠ²Π°ΡΡΠΈΡΠ°-ΡΡΡΠ΄ΠΈΡ Ρ Π΄Π²ΡΠΌΡ ΠΎΠΊΠ½Π°ΠΌΠΈ
- Π‘ΡΡΠ΄ΠΈΡ Ρ ΠΏΠ°Π½ΠΎΡΠ°ΠΌΠ½ΡΠΌΠΈ ΠΎΠΊΠ½Π°ΠΌΠΈ
ΠΠ²Π°ΡΡΠΈΡΠ°-ΡΡΡΠ΄ΠΈΡ β ΡΡΠΎ ΡΠΎΠ²ΡΠ΅ΠΌΠ΅Π½Π½ΡΠΉ ΡΠΈΠΏ ΠΆΠΈΠ»ΡΡ, ΠΊΠΎΡΠΎΡΡΠΉ ΠΌΠ½ΠΎΠ³ΠΈΠΌ ΠΏΠΎ ΠΊΠ°ΡΠΌΠ°Π½Ρ. Π ΡΠΎ ΠΆΠ΅ Π²ΡΠ΅ΠΌΡ ΠΏΠΎΠ΄ΠΎΠ±Π½Π°Ρ ΠΊΠ²Π°ΡΡΠΈΡΠ° ΠΈΠΌΠ΅Π΅Ρ Π½Π΅ ΡΠΎΠ»ΡΠΊΠΎ Π΄ΠΎΡΡΠΎΠΈΠ½ΡΡΠ²Π°, Π½ΠΎ ΠΈ Π½Π΅Π΄ΠΎΡΡΠ°ΡΠΊΠΈ. ΠΡΠΈ Π΅Π΅ ΠΎΡΠΎΡΠΌΠ»Π΅Π½ΠΈΠΈ Π²Π°ΠΆΠ½ΠΎ Π³ΡΠ°ΠΌΠΎΡΠ½ΠΎ ΠΏΠΎΠ΄ΠΎΠΉΡΠΈ ΠΊ Π΄ΠΈΠ·Π°ΠΉΠ½Ρ ΠΈΠ½ΡΠ΅ΡΡΠ΅ΡΠ°, Π²Π΅Π΄Ρ Π²Π½ΡΡΡΠ΅Π½Π½Π΅Π΅ ΠΏΡΠΎΡΡΡΠ°Π½ΡΡΠ²ΠΎ Π΄ΠΎΠ»ΠΆΠ½ΠΎ Π±ΡΡΡ Π³Π°ΡΠΌΠΎΠ½ΠΈΡΠ½ΡΠΌ ΠΈ ΡΡΠ½ΠΊΡΠΈΠΎΠ½Π°Π»ΡΠ½ΡΠΌ, Π΄ΠΎΠ±ΠΈΡΡΡΡ ΡΡΠΎΠ³ΠΎ ΠΌΠΎΠΆΠ½ΠΎ Π»ΠΈΡΡ ΠΏΡΠΈΠ΄Π΅ΡΠΆΠΈΠ²Π°ΡΡΡ ΠΎΠΏΡΠ΅Π΄Π΅Π»Π΅Π½Π½ΡΡ ΠΏΡΠ°Π²ΠΈΠ» ΠΏΠ»Π°Π½ΠΈΡΠΎΠ²ΠΊΠΈ ΠΈ Π·ΠΎΠ½ΠΈΡΠΎΠ²Π°Π½ΠΈΡ. ΠΠ΅ΡΠ²ΡΠΌ Π΄Π΅Π»ΠΎΠΌ Π½ΡΠΆΠ½ΠΎ ΡΡΠ΅ΡΡΡ ΠΊΠΎΠ»ΠΈΡΠ΅ΡΡΠ²ΠΎ ΠΎΠΊΠΎΠ½, ΠΈΡ ΡΠΎΡΠΌΡ ΠΈ ΡΠ°Π·ΠΌΠ΅Ρ, Π° ΡΠ°ΠΊΠΆΠ΅ Π³Π°Π±Π°ΡΠΈΡΡ ΠΆΠΈΠ»ΡΡ, Π½Π°Π»ΠΈΡΠΈΠ΅ ΡΠ»Π΅ΠΌΠ΅Π½ΡΠΎΠ², ΡΡΠ»ΠΎΠΆΠ½ΡΡΡΠΈΡ ΡΠ°Π·ΡΠ°Π±ΠΎΡΠΊΡ Π΄ΠΈΠ·Π°ΠΉΠ½Π° ΠΈΠ½ΡΠ΅ΡΡΠ΅ΡΠ°.

ΠΠΈΠ·Π°ΠΉΠ½ ΠΈΠ½ΡΠ΅ΡΡΠ΅ΡΠ° ΠΊΠ²Π°ΡΡΠΈΡΡ-ΡΡΡΠ΄ΠΈΠΈ Π½ΡΠΆΠ΄Π°Π΅ΡΡΡ Π² ΡΡΠ°ΡΠ΅Π»ΡΠ½ΠΎΠΌ ΠΏΠΎΠ΄Ρ ΠΎΠ΄Π΅, Π²Π΅Π΄Ρ Π²Π»Π°Π΄Π΅Π»Π΅Ρ ΠΆΠΈΠ»ΡΡ Π΄ΠΎΠ»ΠΆΠ΅Π½ Π½Π΅ ΡΠΎΠ»ΡΠΊΠΎ ΡΡΠ°ΡΠ΅Π»ΡΠ½ΠΎ ΠΏΡΠΎΠ΄ΡΠΌΠ°ΡΡ ΠΈΠ½ΡΠ΅ΡΡΠ΅Ρ, Π½ΠΎ ΠΈ ΡΠ΄Π΅Π»Π°ΡΡ ΡΠ°ΠΊ, ΡΡΠΎΠ±Ρ Π²ΡΠ΅ ΡΡΠ½ΠΊΡΠΈΠΎΠ½Π°Π»ΡΠ½ΡΠ΅ Π·ΠΎΠ½Ρ Π²ΡΠ³Π»ΡΠ΄Π΅Π»ΠΈ ΠΎΡΠΈΠ³ΠΈΠ½Π°Π»ΡΠ½ΠΎ, Π³Π°ΡΠΌΠΎΠ½ΠΈΡΡΡ Π΄ΡΡΠ³ Ρ Π΄ΡΡΠ³ΠΎΠΌ. ΠΠΊΠ½ΠΎ β ΠΏΡΠΎΡΡΠΎΠΉ Π°ΡΡ ΠΈΡΠ΅ΠΊΡΡΡΠ½ΡΠΉ ΡΠ»Π΅ΠΌΠ΅Π½Ρ, ΠΊΠΎΡΠΎΡΡΠΉ Π΅ΡΡΡ Π² Π»ΡΠ±ΠΎΠΉ ΠΊΠ²Π°ΡΡΠΈΡΠ΅ ΠΈΠ»ΠΈ ΡΠ°ΡΡΠ½ΠΎΠΌ Π΄ΠΎΠΌΠ΅. ΠΠ°Π·Π°Π»ΠΎΡΡ Π±Ρ, ΠΊΠ°ΠΊ ΠΎΠ½ΠΎ ΠΌΠΎΠΆΠ΅Ρ ΠΏΠΎΠ²Π»ΠΈΡΡΡ Π½Π° ΠΎΡΠΎΡΠΌΠ»Π΅Π½ΠΈΠ΅ ΠΏΡΠΎΡΡΡΠ°Π½ΡΡΠ²Π°? ΠΠΈΠ·Π°ΠΉΠ½Π΅ΡΡ Ρ ΡΠ²Π΅ΡΠ΅Π½Π½ΠΎΡΡΡΡ Π·Π°ΡΠ²Π»ΡΡΡ, ΡΡΠΎ ΠΎΠΊΠ½ΠΎ ΠΈΠ³ΡΠ°Π΅Ρ ΠΎΠΏΡΠ΅Π΄Π΅Π»ΡΡΡΡΡ ΡΠΎΠ»Ρ, Π²Π΅Π΄Ρ Π² Π·Π°Π²ΠΈΡΠΈΠΌΠΎΡΡΠΈ ΠΎΡ ΡΠ°ΡΠΏΠΎΠ»ΠΎΠΆΠ΅Π½ΠΈΡ, ΡΠΎΡΠΌΡ ΠΈ ΡΠΈΡΠ»Π° ΠΎΠΊΠΎΠ½ Π·Π°Π²ΠΈΡΠΈΡ ΡΠ°ΡΡΡΠ°Π½ΠΎΠ²ΠΊΠ° ΠΌΠ΅Π±Π΅Π»ΠΈ ΠΈ ΡΠ°ΡΠΏΠΎΠ»ΠΎΠΆΠ΅Π½ΠΈΠ΅ ΡΡΠ½ΠΊΡΠΈΠΎΠ½Π°Π»ΡΠ½ΡΡ Π·ΠΎΠ½.

ΠΠ»Π°Π²Π½Π°Ρ ΠΏΡΠΎΠ±Π»Π΅ΠΌΠ° Π½Π΅Π±ΠΎΠ»ΡΡΠΈΡ ΠΊΠ²Π°ΡΡΠΈΡ-ΡΡΡΠ΄ΠΈΠΉ β Π½Π΅Π΄ΠΎΡΡΠ°ΡΠΎΠΊ Π΅ΡΡΠ΅ΡΡΠ²Π΅Π½Π½ΠΎΠ³ΠΎ ΠΎΡΠ²Π΅ΡΠ΅Π½ΠΈΡ. Π Π΅ΡΠΈΡΡ ΡΡΠΎΡ Π½Π΅Π΄ΠΎΡΡΠ°ΡΠΎΠΊ ΠΌΠΎΠΆΠ½ΠΎ, ΠΎΡΠ΄Π°Π² ΠΏΡΠ΅Π΄ΠΏΠΎΡΡΠ΅Π½ΠΈΠ΅ ΡΠ²Π΅ΡΠ»ΠΎΠΉ ΡΠ²Π΅ΡΠΎΠ²ΠΎΠΉ Π³Π°ΠΌΠΌΠ΅. Π§ΡΠΎ ΠΊΠ°ΡΠ°Π΅ΡΡΡ ΡΡΠΈΠ»Ρ, ΡΠΎ Π»ΡΡΡΠ΅ Π²ΡΠ΅Π³ΠΎ Π²ΡΠ±ΠΈΡΠ°ΡΡ ΠΌΠ΅ΠΆΠ΄Ρ ΡΠΊΠ°Π½Π΄ΠΈΠ½Π°Π²ΡΠΊΠΈΠΌ Π½Π°ΠΏΡΠ°Π²Π»Π΅Π½ΠΈΠ΅ΠΌ ΠΈ Π»ΠΎΡΡΠΎΠΌ. Π’Π°ΠΊΠΆΠ΅ ΠΎΡΠΎΠ±ΠΎΠ΅ Π²Π½ΠΈΠΌΠ°Π½ΠΈΠ΅ ΡΠ΄Π΅Π»ΡΡΡ Π²ΡΠ±ΠΎΡΡ ΠΈΡΡΠΎΡΠ½ΠΈΠΊΠΎΠ² ΠΎΡΠ²Π΅ΡΠ΅Π½ΠΈΡ. ΠΠ°ΡΡΠΈΠ²Π½ΡΠ΅ Π»ΡΡΡΡΡ ΡΠΎΠ·Π΄Π°Π΄ΡΡ Π³Π½Π΅ΡΡΡΠ΅Π΅ Π²ΠΏΠ΅ΡΠ°ΡΠ»Π΅Π½ΠΈΠ΅ ΠΈ ΡΠ½ΠΈΠ·ΡΡ Π²ΡΡΠΎΡΡ ΠΏΠΎΡΠΎΠ»ΠΊΠ°, ΡΠΎΡΡΠ΅ΡΡ Β«ΡΠΊΡΠ°Π΄ΡΡΒ» Π΄ΡΠ°Π³ΠΎΡΠ΅Π½Π½ΡΠ΅ ΠΊΠ²Π°Π΄ΡΠ°ΡΠ½ΡΠ΅ ΠΌΠ΅ΡΡΡ, Π° Π·Π½Π°ΡΠΈΡ, Π»ΡΡΡΠ΅ Π²ΡΠ΅Π³ΠΎ ΠΈΡΠΏΠΎΠ»ΡΠ·ΠΎΠ²Π°ΡΡ Π½Π°ΡΡΠ΅Π½Π½ΡΠ΅ ΡΠ²Π΅ΡΠΈΠ»ΡΠ½ΠΈΠΊΠΈ, ΠΏΠΎΠ΄ΡΠ²Π΅ΡΠΊΠΈ ΠΈ ΡΡΠ΅ΠΊΠΎΠ²ΡΠ΅ ΡΠΈΡΡΠ΅ΠΌΡ ΠΎΡΠ²Π΅ΡΠ΅Π½ΠΈΡ. ΠΠ°ΠΊ ΡΠ΄Π΅Π»Π°ΡΡ ΠΈΠ½ΡΠ΅ΡΡΠ΅Ρ ΡΡΡΠ΄ΠΈΠΈ Ρ ΠΎΠ΄Π½ΠΈΠΌ ΠΈΠ»ΠΈ Π΄Π²ΡΠΌΡ ΠΎΠΊΠ½Π°ΠΌΠΈ ΠΏΡΠΈΠ²Π»Π΅ΠΊΠ°ΡΠ΅Π»ΡΠ½ΡΠΌ? Π£Π·Π½Π°ΠΉΡΠ΅ ΠΎΠ± ΡΡΠΎΠΌ Π²ΠΌΠ΅ΡΡΠ΅ Ρ Π½Π°ΠΌΠΈ.

ΠΠ½ΡΠ΅ΡΡΠ΅Ρ ΡΡΡΠ΄ΠΈΠΈ Ρ ΠΎΠ΄Π½ΠΈΠΌ ΠΎΠΊΠ½ΠΎΠΌ
Π‘ΠΏΠ΅ΡΠΈΠ°Π»ΠΈΡΡΡ ΡΠ²Π΅ΡΠ΅Π½Ρ Π² ΡΠΎΠΌ, ΡΡΠΎ ΡΠ»ΠΎΠΆΠ½Π΅Π΅ Π²ΡΠ΅Π³ΠΎ ΡΠΎΠ·Π΄Π°ΡΡ ΡΡΠΏΠ΅ΡΠ½ΡΠΉ ΠΈΠ½ΡΠ΅ΡΡΠ΅Ρ Π½Π΅Π±ΠΎΠ»ΡΡΠΎΠΉ ΡΡΡΠ΄ΠΈΠΈ Ρ ΠΎΠ΄Π½ΠΈΠΌ ΠΎΠΊΠ½ΠΎΠΌ. ΠΠ΅Π»ΠΎ Π² ΡΠΎΠΌ, ΡΡΠΎ ΠΏΠΎΠΌΠ΅ΡΠ΅Π½ΠΈΠ΅ Ρ ΠΎΡΡ ΠΈ Π½Π΅ ΠΈΠΌΠ΅Π΅Ρ ΠΌΠ΅ΠΆΠΊΠΎΠΌΠ½Π°ΡΠ½ΡΠ΅ ΡΡΠ΅Π½Ρ, Π½ΠΎ ΠΎΡΡΠ°Π΅ΡΡΡ Π½Π΅Π±ΠΎΠ»ΡΡΠΈΠΌ, ΡΡΠΎ ΡΡΠ»ΠΎΠΆΠ½ΡΠ΅Ρ ΡΠ°ΡΡΡΠ°Π½ΠΎΠ²ΠΊΡ ΠΌΠ΅Π±Π΅Π»ΠΈ. ΠΡΠ΅Π½Ρ Π²Π°ΠΆΠ½ΠΎ ΡΠ°ΡΠΏΠΎΠ»ΠΎΠΆΠΈΡΡ Π΅Π΅ ΡΠ°ΠΊ, ΡΡΠΎΠ±Ρ Π½Π΅ ΠΏΠΎΡΠ²ΠΈΠ»ΠΎΡΡ ΠΎΡΡΡΠ΅Π½ΠΈΠ΅ Π·Π°Ρ Π»Π°ΠΌΠ»Π΅Π½Π½ΠΎΡΡΠΈ ΠΏΡΠΎΡΡΡΠ°Π½ΡΡΠ²Π°. ΠΡΠ»ΠΈ Π² ΠΊΠ²Π°ΡΡΠΈΡΠ΅-ΡΡΡΠ΄ΠΈΠΈ Π²ΡΠ΅Π³ΠΎ ΠΎΠ΄Π½ΠΎ ΠΎΠΊΠ½ΠΎ, ΡΠΎ Π΅ΡΡΠ΅ΡΡΠ²Π΅Π½Π½ΠΎΠ³ΠΎ ΡΠ²Π΅ΡΠ° Π·Π΄Π΅ΡΡ Π½Π΅Π΄ΠΎΡΡΠ°ΡΠΎΡΠ½ΠΎ, ΡΠ΅ΡΠΈΡΡ ΡΡΡ ΠΏΡΠΎΠ±Π»Π΅ΠΌΡ ΠΏΠΎΠΌΠΎΠ³ΡΡ Π·Π΅ΡΠΊΠ°Π»Π°. ΠΠΎΠΆΠ½ΠΎ ΡΠ΄Π΅Π»Π°ΡΡ Π·Π΅ΡΠΊΠ°Π»ΡΠ½ΡΡ ΡΡΠ΅Π½Ρ, ΠΏΠΎΡΠΎΠ»ΠΎΠΊ ΠΈΠ»ΠΈ ΠΆΠ΅ ΠΏΠΎΠ²Π΅ΡΠΈΡΡ Π·Π΅ΡΠΊΠ°Π»ΠΎ Π½Π°ΠΏΡΠΎΡΠΈΠ² ΠΎΠΊΠ½Π° β Π²ΡΠ΅ ΡΡΠΎ ΠΏΠΎΠ·Π²ΠΎΠ»ΡΠ΅Ρ Π½Π°ΠΏΠΎΠ»Π½ΠΈΡΡ ΠΏΡΠΎΡΡΡΠ°Π½ΡΡΠ²ΠΎ Π΄Π½Π΅Π²Π½ΡΠΌ ΡΠ²Π΅ΡΠΎΠΌ.

ΠΡΠΎΠΌΠ΅ ΡΠΎΠ³ΠΎ, ΠΏΡΠ΅Π΄ΠΏΠΎΡΡΠΈΡΠ΅Π»ΡΠ½ΠΎ ΠΈΡΠΏΠΎΠ»ΡΠ·ΠΎΠ²Π°Π½ΠΈΠ΅ ΠΌΠ΅Π±Π΅Π»ΠΈ Ρ Π·Π΅ΡΠΊΠ°Π»ΡΠ½ΡΠΌΠΈ ΠΈ Π³Π»ΡΠ½ΡΠ΅Π²ΡΠΌΠΈ ΠΏΠΎΠ²Π΅ΡΡ Π½ΠΎΡΡΡΠΌΠΈ. Π‘Π΄Π΅Π»Π°ΡΡ ΠΏΡΠΎΡΡΡΠ°Π½ΡΡΠ²ΠΎ ΠΌΠ΅Π½Π΅Π΅ Π·Π°Ρ Π»Π°ΠΌΠ»Π΅Π½Π½ΡΠΌ ΠΏΠΎΠΌΠΎΠ³ΡΡ ΡΡΠ΅ΠΊΠ»ΡΠ½Π½ΡΠ΅ ΠΏΡΠ΅Π΄ΠΌΠ΅ΡΡ (ΠΏΠΎΠ»ΠΊΠΈ, ΡΡΠΎΠ», ΡΡΠΎΠ»Π΅ΡΠ½ΠΈΡΡ). ΠΡΠ΅ ΡΠ»Π΅ΠΌΠ΅Π½ΡΡ ΠΈΠ½ΡΠ΅ΡΡΠ΅ΡΠ° Π΄ΠΎΠ»ΠΆΠ½Ρ Π±ΡΡΡ Π»Π΅Π³ΠΊΠΈΠΌΠΈ, ΠΎΠ»ΠΈΡΠ΅ΡΠ²ΠΎΡΡΡΡ ΡΠΎΠ±ΠΎΠΉ Π²ΠΎΠ·Π΄ΡΡΠ½ΠΎΡΡΡ. Π§ΡΠΎ ΠΊΠ°ΡΠ°Π΅ΡΡΡ ΠΎΡΠ΄Π΅Π»ΠΎΡΠ½ΡΡ ΠΌΠ°ΡΠ΅ΡΠΈΠ°Π»ΠΎΠ², ΡΠΎ ΡΠ°ΠΊΠΆΠ΅ ΠΌΠΎΠΆΠ½ΠΎ ΠΈΡΠΏΠΎΠ»ΡΠ·ΠΎΠ²Π°ΡΡ Π±Π»Π΅ΡΡΡΡΠΈΠ΅ ΠΏΠΎΠ²Π΅ΡΡ Π½ΠΎΡΡΠΈ, Π²ΠΈΠ·ΡΠ°Π»ΡΠ½ΠΎ ΡΠ²Π΅Π»ΠΈΡΠΈΠ²Π°ΡΡΠΈΠ΅ ΠΏΡΠΎΡΡΡΠ°Π½ΡΡΠ²ΠΎ Π½Π΅Π±ΠΎΠ»ΡΡΠΎΠΉ ΠΊΠ²Π°ΡΡΠΈΡΡ-ΡΡΡΠ΄ΠΈΠΈ Ρ ΠΎΠ΄Π½ΠΈΠΌ ΠΎΠΊΠ½ΠΎΠΌ.

ΠΡΠ΅ ΠΎΠ΄Π½Π° ΠΏΡΠΎΠ±Π»Π΅ΠΌΠ°, Ρ ΠΊΠΎΡΠΎΡΠΎΠΉ ΠΏΡΠΈΠ΄Π΅ΡΡΡ ΡΡΠΎΠ»ΠΊΠ½ΡΡΡΡΡ Π²Π»Π°Π΄Π΅Π»ΡΡΡ Π½Π΅Π±ΠΎΠ»ΡΡΠΎΠΉ ΠΊΠ²Π°ΡΡΠΈΡΡ β ΡΠ»ΠΎΠΆΠ½ΠΎΡΡΡ Π³ΡΠ°ΠΌΠΎΡΠ½ΠΎΠ³ΠΎ Π·ΠΎΠ½ΠΈΡΠΎΠ²Π°Π½ΠΈΡ. Π‘ΡΡΠ΄ΠΈΡ Ρ ΠΎΠ΄Π½ΠΈΠΌ ΠΎΠΊΠ½ΠΎΠΌ ΠΏΡΠ΅Π΄ΠΏΠΎΠ»Π°Π³Π°Π΅Ρ, ΡΡΠΎ Π±ΠΎΠ»ΡΡΠ΅ Π²ΡΠ΅Π³ΠΎ Π² Π΄Π½Π΅Π²Π½ΠΎΠΌ ΡΠ²Π΅ΡΠ΅ Π½ΡΠΆΠ΄Π°Π΅ΡΡΡ Π³ΠΎΡΡΠΈΠ½Π°Ρ Π·ΠΎΠ½Π°, Π²Π΅Π΄Ρ ΠΈΠΌΠ΅Π½Π½ΠΎ ΡΠ°ΠΌ ΠΏΡΠΎΠ²ΠΎΠ΄ΠΈΡΡΡ ΠΎΡΠ½ΠΎΠ²Π½Π°Ρ ΡΠ°ΡΡΡ Π²ΡΠ΅ΠΌΠ΅Π½ΠΈ. Π ΡΠ΄ΠΎΠΌ ΠΌΠΎΠΆΠ½ΠΎ ΠΎΠ±ΠΎΡΡΠ΄ΠΎΠ²Π°ΡΡ ΡΠ°Π±ΠΎΡΡΡ Π·ΠΎΠ½Ρ, ΠΎΠ±ΡΡΡΡΠΎΠΈΠ² Π² ΠΊΠ°ΡΠ΅ΡΡΠ²Π΅ ΡΡΠΎΠ»Π° ΠΏΠΎΠ΄ΠΎΠΊΠΎΠ½Π½ΠΈΠΊ. ΠΠΎΠ·Π»Π΅ Π³ΠΎΡΡΠΈΠ½ΠΎΠΉ Π·ΠΎΠ½Ρ Π±Π»ΠΈΠΆΠ΅ Π²ΡΠ΅Π³ΠΎ ΠΌΠΎΠΆΠ΅Ρ Π±ΡΡΡ Π·ΠΎΠ½Π° ΠΏΡΠΈΠ³ΠΎΡΠΎΠ²Π»Π΅Π½ΠΈΡ ΠΏΠΈΡΠΈ, Π΄Π»Ρ ΡΠ°Π·Π΄Π΅Π»Π΅Π½ΠΈΡ ΠΈΡΠΏΠΎΠ»ΡΠ·ΡΡΡ Π±Π°ΡΠ½ΡΡ ΡΡΠΎΠΉΠΊΡ, ΠΊΡΡ ΠΎΠ½Π½ΡΠΉ ΠΎΡΡΡΠΎΠ² ΠΈΠ»ΠΈ Π½Π΅Π±ΠΎΠ»ΡΡΠΎΠΉ ΠΏΡΡΠΌΠΎΡΠ³ΠΎΠ»ΡΠ½ΡΠΉ ΡΡΠΎΠ». Π§ΡΠΎ ΠΊΠ°ΡΠ°Π΅ΡΡΡ ΡΠΏΠ°Π»ΡΠ½ΠΈ, ΡΠΎ Π² Π½Π΅Π±ΠΎΠ»ΡΡΠΎΠΉ ΠΊΠ²Π°ΡΡΠΈΡΠ΅ Π΅Π΅ ΡΡΠ½ΠΊΡΠΈΡ Π²ΡΠΏΠΎΠ»Π½ΡΠ΅Ρ Π³ΠΎΡΡΠΈΠ½Π°Ρ Ρ ΡΠ°ΡΠΊΠ»Π°Π΄Π½ΡΠΌ Π΄ΠΈΠ²Π°Π½ΠΎΠΌ.

ΠΡΠΈΡ ΠΎΠΆΠ°Ρ Π·Π΄Π΅ΡΡ ΠΎΡΡΡΡΡΡΠ²ΡΠ΅Ρ, ΠΏΠΎΡΡΠΎΠΌΡ Π²ΠΎΠ·Π»Π΅ Π²Ρ ΠΎΠ΄Π° Π² ΠΊΠ²Π°ΡΡΠΈΡΡ ΡΡΡΠ°Π½Π°Π²Π»ΠΈΠ²Π°Π΅ΡΡΡ ΡΠΊΠ°Ρ-ΠΊΡΠΏΠ΅, Π³Π΄Π΅ ΠΌΠΎΠΆΠ½ΠΎ ΡΠ»Π°ΠΆΠΈΠ²Π°ΡΡ ΠΌΠ΅Π±Π΅Π»Ρ ΠΈ Π²Π΅ΡΡ Π½ΡΡ ΠΎΠ΄Π΅ΠΆΠ΄Ρ. Π’Π°ΠΊΠΎΠΉ ΠΌΠ΅ΡΠΎΠ΄ Π·ΠΎΠ½ΠΈΡΠΎΠ²Π°Π½ΠΈΡ ΡΡΠΈΡΠ°Π΅ΡΡΡ ΠΊΠ»Π°ΡΡΠΈΡΠ΅ΡΠΊΠΈΠΌ, Π½ΠΎ Π½Π΅ Π΅Π΄ΠΈΠ½ΡΡΠ²Π΅Π½Π½ΡΠΌ. Π ΠΏΡΠΈΠΌΠ΅ΡΡ, Π·ΠΎΠ½Ρ Ρ ΠΎΠΊΠ½Π° ΠΈΡΠΏΠΎΠ»ΡΠ·ΡΡΡ Π΄Π»Ρ ΠΎΠ±ΡΡΡΡΠΎΠΉΡΡΠ²Π° ΠΌΠ΅ΡΡΠ° ΠΎΡΠ΄ΡΡ Π°, Π° Π΅ΡΠ»ΠΈ ΠΎΠΊΠ½ΠΎ ΡΠ°ΡΠΏΠΎΠ»ΠΎΠΆΠ΅Π½ΠΎ Π½Π΅ Π² ΡΠ΅Π½ΡΡΠ΅, Π° Π³Π΄Π΅-ΡΠΎ ΡΠ±ΠΎΠΊΡ, ΡΠΎ ΡΠΏΠ°Π»ΡΠ½ΡΡ Π·ΠΎΠ½Ρ ΠΌΠΎΠΆΠ½ΠΎ ΠΎΠ±ΠΎΡΡΠ΄ΠΎΠ²Π°ΡΡ Π² ΠΏΡΠΎΡΠΈΠ²ΠΎΠΏΠΎΠ»ΠΎΠΆΠ½ΠΎΠΉ ΡΡΠΎΡΠΎΠ½Π΅, ΠΎΠ³ΡΠ°Π΄ΠΈΠ² Π΅Π΅ ΠΏΠ΅ΡΠ΅Π³ΠΎΡΠΎΠ΄ΠΊΠΎΠΉ ΠΈΠ»ΠΈ Π·Π°Π½Π°Π²Π΅ΡΠΎΠΌ.

ΠΠ²Π°ΡΡΠΈΡΠ°-ΡΡΡΠ΄ΠΈΡ Ρ Π΄Π²ΡΠΌΡ ΠΎΠΊΠ½Π°ΠΌΠΈ
ΠΡΠ»ΠΈ Π½Π΅Π±ΠΎΠ»ΡΡΠ°Ρ ΠΊΠ²Π°ΡΡΠΈΡΠ°-ΡΡΡΠ΄ΠΈΡ ΠΈΠΌΠ΅Π΅Ρ Π² ΡΠ²ΠΎΠ΅ΠΌ ΡΠ°ΡΠΏΠΎΡΡΠΆΠ΅Π½ΠΈΠΈ Π΄Π²Π° ΠΎΠΊΠ½Π°, ΡΠΎ Ρ Π΄ΠΈΠ·Π°ΠΉΠ½Π΅ΡΠΎΠ² Β«ΡΠ°Π·Π²ΡΠ·Π°Π½Ρ ΡΡΠΊΠΈΒ», Π²Π΅Π΄Ρ Π·Π΄Π΅ΡΡ ΠΏΠΎΠ»Π΅Ρ ΡΠ°Π½ΡΠ°Π·ΠΈΠΈ ΠΏΡΠ°ΠΊΡΠΈΡΠ΅ΡΠΊΠΈ Π½ΠΈΡΠ΅ΠΌ Π½Π΅ ΠΎΠ³ΡΠ°Π½ΠΈΡΠ΅Π½. ΠΠΊΠ½Π°, ΡΠ°ΡΠΏΠΎΠ»ΠΎΠΆΠ΅Π½Π½ΡΠ΅ Π½Π° ΡΠΈΡΠΎΠΊΠΎΠΉ ΡΡΠ΅Π½Π΅, ΠΏΠΎΠ·Π²ΠΎΠ»ΡΡΡ ΡΠ°Π·Π³ΡΠ°Π½ΠΈΡΠΈΡΡ ΡΡΠ½ΠΊΡΠΈΠΎΠ½Π°Π»ΡΠ½ΡΠ΅ Π·ΠΎΠ½Ρ, Π±Π»Π°Π³ΠΎΠ΄Π°ΡΡ ΡΠ΅ΠΌΡ ΠΈΠ½ΡΠ΅ΡΡΠ΅Ρ Π±ΡΠ΄Π΅Ρ Π²ΡΠ³Π»ΡΠ΄Π΅ΡΡ ΡΠ»Π΅Π΄ΡΡΡΠΈΠΌ ΠΎΠ±ΡΠ°Π·ΠΎΠΌ:
- ΠΡΡ Π½Ρ β Π²ΠΎΠ·Π»Π΅ 1-Π³ΠΎ ΠΎΠΊΠ½Π°.
- ΠΠΎΡΡΠΈΠ½Π°Ρ β Ρ 2-Π³ΠΎ ΠΎΠΊΠ½Π°.
- Π‘ΡΠΎΠ»ΠΎΠ²Π°Ρ Π·ΠΎΠ½Π° β ΠΌΠ΅ΠΆΠ΄Ρ ΠΎΠΊΠ½Π°ΠΌΠΈ.

ΠΠ»Π°Π³ΠΎΠ΄Π°ΡΡ ΡΠ°ΠΊΠΎΠΌΡ ΡΠ΅ΡΠ΅Π½ΠΈΡ ΠΏΠΎΠΌΠ΅ΡΠ΅Π½ΠΈΠ΅ ΡΡΠ°Π½ΠΎΠ²ΠΈΡΡΡ ΡΡΠ½ΠΊΡΠΈΠΎΠ½Π°Π»ΡΠ½ΡΠΌ ΠΈ ΠΊΠΎΠΌΡΠΎΡΡΠ½ΡΠΌ. ΠΠ»Ρ Π·ΠΎΠ½ΠΈΡΠΎΠ²Π°Π½ΠΈΡ ΠΏΡΠΎΡΡΡΠ°Π½ΡΡΠ²Π° ΠΌΠΎΠΆΠ½ΠΎ ΠΈΡΠΏΠΎΠ»ΡΠ·ΠΎΠ²Π°ΡΡ Π½Π΅Π²ΡΡΠΎΠΊΠΈΠ΅ ΠΏΠ΅ΡΠ΅Π³ΠΎΡΠΎΠ΄ΠΊΠΈ, ΡΠΎΠ·Π΄Π°ΡΡΠΈΠ΅ ΡΡΡΠ½ΡΡ Π°ΡΠΌΠΎΡΡΠ΅ΡΡ, Π½ΠΎ, Π² ΡΠΎ ΠΆΠ΅ Π²ΡΠ΅ΠΌΡ, Π½Π΅ Π·Π°Ρ Π»Π°ΠΌΠ»ΡΡΡΠΈΠ΅ ΠΏΡΠΎΡΡΡΠ°Π½ΡΡΠ²ΠΎ. ΠΡΠΎΠΌΠ΅ ΡΠΎΠ³ΠΎ, ΠΏΠ΅ΡΠ΅Π³ΠΎΡΠΎΠ΄ΠΊΠΈ ΠΌΠΎΠΆΠ½ΠΎ ΡΠ΄Π΅Π»Π°ΡΡ Π±ΠΎΠ»Π΅Π΅ ΡΡΠ½ΠΊΡΠΈΠΎΠ½Π°Π»ΡΠ½ΡΠΌΠΈ, Π·Π°ΠΊΡΠ΅ΠΏΠΈΠ² Π½Π° Π½ΠΈΡ ΠΏΠΎΠ»ΠΊΠΈ Π΄Π»Ρ Ρ ΡΠ°Π½Π΅Π½ΠΈΡ ΠΏΡΠ΅Π΄ΠΌΠ΅ΡΠΎΠ² Π΄Π΅ΠΊΠΎΡΠ°.

ΠΡΠΏΠΎΠ»ΡΠ·ΠΎΠ²Π°Π½ΠΈΠ΅ ΠΏΠ΅ΡΠ΅Π³ΠΎΡΠΎΠ΄ΠΎΠΊ Π² ΡΡΡΠ΄ΠΈΠΈ Ρ Π΄Π²ΡΠΌΡ ΠΎΠΊΠ½Π°ΠΌΠΈ Π½Π΅ ΠΎΠ±ΡΠ·Π°ΡΠ΅Π»ΡΠ½ΠΎ, Π²Π΅Π΄Ρ ΠΌΠΎΠΆΠ½ΠΎ ΡΠ°Π·Π΄Π΅Π»ΠΈΡΡ Π·ΠΎΠ½Ρ ΡΠ°ΠΊ, ΡΡΠΎΠ±Ρ Π½Π° ΠΊΠ°ΠΆΠ΄ΡΡ ΠΈΠ· Π½ΠΈΡ Π±ΡΠ»ΠΎ ΠΎΡΠ²Π΅Π΄Π΅Π½ΠΎ ΠΏΠΎ ΠΎΠ΄Π½ΠΎΠΌΡ ΠΎΠΊΠ½Ρ. ΠΠ°ΠΏΡΠΈΠΌΠ΅Ρ, Ρ ΠΎΠ΄Π½ΠΎΠΉ ΡΡΠΎΡΠΎΠ½Ρ ΡΠ°ΡΠΏΠΎΠ»Π°Π³Π°ΡΡ ΠΎΠ±Π΅Π΄Π΅Π½Π½ΡΡ Π·ΠΎΠ½Ρ, Π° Π½Π°ΠΏΡΠΎΡΠΈΠ² Π½Π΅Π΅ ΠΌΠ΅ΡΡΠΎ Π΄Π»Ρ ΠΏΡΠΈΠ³ΠΎΡΠΎΠ²Π»Π΅Π½ΠΈΡ ΠΏΠΈΡΠΈ, Π° Π²ΠΎΠ·Π»Π΅ Π΄ΡΡΠ³ΠΎΠ³ΠΎ ΠΎΠΊΠ½Π° β Π·ΠΎΠ½Ρ ΠΎΡΠ΄ΡΡ Π° ΠΈ Π²ΡΡ ΠΌΡΠ³ΠΊΡΡ ΠΌΠ΅Π±Π΅Π»Ρ. ΠΠ»ΡΡΠ΅ΡΠ½Π°ΡΠΈΠ²Π½ΠΎΠ΅ ΡΠ΅ΡΠ΅Π½ΠΈΠ΅ β ΡΠ΅Π»Π΅Π²ΠΈΠ·ΠΎΡ ΠΌΠ΅ΠΆΠ΄Ρ ΠΎΠΊΠ½Π°ΠΌΠΈ ΠΈ Π·ΠΎΠ½Π° ΠΎΡΠ΄ΡΡ Π° Π½Π°ΠΏΡΠΎΡΠΈΠ² Π½Π΅Π³ΠΎ, Π²ΡΠ΅ ΠΎΡΡΠ°Π»ΡΠ½ΡΠ΅ ΡΡΠ½ΠΊΡΠΈΠΎΠ½Π°Π»ΡΠ½ΡΠ΅ Π·ΠΎΠ½Ρ ΠΏΠΎ Π±ΠΎΠΊΠ°ΠΌ ΠΎΡ Π³ΠΎΡΡΠΈΠ½ΠΎΠΉ.

Π‘ΡΡΠ΄ΠΈΡ Ρ ΠΏΠ°Π½ΠΎΡΠ°ΠΌΠ½ΡΠΌΠΈ ΠΎΠΊΠ½Π°ΠΌΠΈ
ΠΠ°Π½ΠΎΡΠ°ΠΌΠ½ΡΠ΅ ΠΎΠΊΠ½Π° Π² Π½Π΅Π±ΠΎΠ»ΡΡΠΎΠΉ ΠΊΠ²Π°ΡΡΠΈΡΠ΅-ΡΡΡΠ΄ΠΈΠΈ β ΡΡΠΎ Π½Π°ΡΡΠΎΡΡΠ°Ρ ΡΠ΄Π°ΡΠ° ΠΈ Π±ΠΎΠ»ΡΡΠ°Ρ ΡΠ΅Π΄ΠΊΠΎΡΡΡ. Π’Π°ΠΊΠΎΠ΅ ΠΎΡΡΠ΅ΠΊΠ»Π΅Π½ΠΈΠ΅ Π²ΡΠ³Π»ΡΠ΄ΠΈΡ Π΄ΠΎΡΠΎΠ³ΠΎ ΠΈ Π±Π»Π°Π³ΠΎΡΠΎΠ΄Π½ΠΎ, Π½Π°ΠΏΠΎΠ»Π½ΡΠ΅Ρ ΠΏΡΠΎΡΡΡΠ°Π½ΡΡΠ²ΠΎ ΡΠ²Π΅ΡΠΎΠΌ, Π΄Π΅Π»Π°Π΅Ρ Π΅Π³ΠΎ Π±ΠΎΠ»Π΅Π΅ ΡΠ²ΠΎΠ±ΠΎΠ΄Π½ΡΠΌ, Π»Π΅Π³ΠΊΠΈΠΌ ΠΈ Π²ΠΎΠ·Π΄ΡΡΠ½ΡΠΌ. Π ΠΈΠ½ΡΠ΅ΡΡΠ΅ΡΠ΅ ΡΠ°ΠΊΠΎΠ³ΠΎ ΠΆΠΈΠ»ΠΈΡΠ° Π²ΡΠ΅ Π΄Π΅ΡΠ°Π»ΠΈ ΠΈΠ½ΡΠ΅ΡΡΠ΅ΡΠ° Π΄ΠΎΠ»ΠΆΠ½Ρ ΠΏΠΎΠ΄ΡΠ΅ΡΠΊΠΈΠ²Π°ΡΡ Π΄ΠΎΡΡΠΎΠΈΠ½ΡΡΠ²Π° ΡΠ²ΠΎΠ±ΠΎΠ΄Π½ΠΎΠΉ ΠΏΠ»Π°Π½ΠΈΡΠΎΠ²ΠΊΠΈ, ΠΏΠΎΡΡΠΎΠΌΡ Π²Π°ΠΆΠ½ΠΎ Π½Π΅ ΠΏΠ΅ΡΠ΅Π³ΡΡΠ·ΠΈΡΡ ΠΏΡΠΎΡΡΡΠ°Π½ΡΡΠ²ΠΎ ΠΌΠ΅Π±Π΅Π»ΡΡ ΠΈ Π΄Π΅ΠΊΠΎΡΠΎΠΌ.

ΠΠ°ΠΆΠ½ΠΎ ΠΎΡΠΈΠ΅Π½ΡΠΈΡΠΎΠ²Π°ΡΡΡΡ Π½Π° Π»Π΅Π³ΠΊΠΎΡΡΡ ΠΏΡΠΎΡΡΡΠ°Π½ΡΡΠ²Π°, ΠΏΠΎΠ΄ΡΠ΅ΡΠΊΠΈΠ²Π°Ρ ΡΡΠΎ ΡΠ²Π΅ΡΠ»ΡΠΌΠΈ ΠΈ ΠΏΠ°ΡΡΠ΅Π»ΡΠ½ΡΠΌΠΈ ΡΠΎΠ½Π°ΠΌΠΈ, ΠΏΡΠ΅ΠΎΠ±Π»Π°Π΄Π°ΡΡΠΈΠΌΠΈ Π² ΠΎΡΠΎΡΠΌΠ»Π΅Π½ΠΈΠΈ ΡΡΡΠ΄ΠΈΠΈ. ΠΠΎΠΌΠ½Π°ΡΠ° Ρ ΠΏΠ°Π½ΠΎΡΠ°ΠΌΠ½ΡΠΌ ΠΎΠΊΠ½ΠΎΠΌ ΠΈΠΌΠ΅Π΅Ρ Π΄ΠΎΡΡΠ°ΡΠΎΡΠ½ΠΎ ΠΌΠ΅ΡΡΠ° Π΄Π»Ρ ΡΠΎΠ³ΠΎ, ΡΡΠΎΠ±Ρ ΡΠ°ΡΠΏΠΎΠ»ΠΎΠΆΠΈΡΡ Π² Π½Π΅ΠΉ Π²ΡΠ΅ Π½Π΅ΠΎΠ±Ρ ΠΎΠ΄ΠΈΠΌΡΠ΅ ΡΡΠ½ΠΊΡΠΈΠΎΠ½Π°Π»ΡΠ½ΡΠ΅ Π·ΠΎΠ½Ρ, ΡΡΠ΅Π΄ΠΈ ΠΊΠΎΡΠΎΡΡΡ Π³ΠΎΡΡΠΈΠ½Π°Ρ, ΡΠΏΠ°Π»ΡΠ½Ρ, ΠΊΡΡ Π½Ρ ΡΠΎ ΡΡΠΎΠ»ΠΎΠ²ΠΎΠΉ ΠΈ ΡΠ°Π±ΠΎΡΠ°Ρ Π·ΠΎΠ½Π°. Π€ΡΠ½ΠΊΡΠΈΠΎΠ½Π°Π»ΡΠ½ΡΠ΅ Π·ΠΎΠ½Ρ Π»ΡΡΡΠ΅ Π²ΡΠ΅Π³ΠΎ ΡΠ°ΡΠΏΠΎΠ»ΠΎΠΆΠΈΡΡ Π½Π°ΠΏΡΠΎΡΠΈΠ² ΠΎΠΊΠ½Π°, ΠΎΡΡΠ°Π²ΠΈΠ² Π²ΠΎΠ·ΠΌΠΎΠΆΠ½ΠΎΡΡΡ Π½Π°ΡΠ»Π°ΠΆΠ΄Π°ΡΡΡΡ ΠΏΠ°Π½ΠΎΡΠ°ΠΌΠ½ΡΠΌ Π²ΠΈΠ΄ΠΎΠΌ ΠΈΠ· Π»ΡΠ±ΠΎΠΉ ΡΠΎΡΠΊΠΈ ΠΊΠΎΠΌΠ½Π°ΡΡ.

ΠΠ°Π½ΠΎΡΠ°ΠΌΠ½ΠΎΠ΅ ΠΎΠΊΠ½ΠΎ β ΡΡΠΎ ΠΊΠ»ΡΡΠ΅Π²ΠΎΠΉ ΡΠ»Π΅ΠΌΠ΅Π½Ρ ΠΈΠ½ΡΠ΅ΡΡΠ΅ΡΠ° ΠΊΠ²Π°ΡΡΠΈΡΡ-ΡΡΡΠ΄ΠΈΠΈ, ΠΏΡΠΈΠ²Π»Π΅ΠΊΠ°ΡΡΠΈΠΉ ΠΊ ΡΠ΅Π±Π΅ Π²Π½ΠΈΠΌΠ°Π½ΠΈΠ΅. ΠΠ»Ρ ΡΠΎΠ³ΠΎ ΡΡΠΎΠ±Ρ ΠΏΠΎΠ΄ΡΠ΅ΡΠΊΠ½ΡΡΡ ΡΠ°ΠΊΠΎΠΉ ΡΠΈΠΏ ΠΎΡΡΠ΅ΠΊΠ»Π΅Π½ΠΈΡ Π΄ΠΎΡΡΠ°ΡΠΎΡΠ½ΠΎ ΠΎΡΠ²ΠΎΠ±ΠΎΠ΄ΠΈΡΡ ΠΏΠ΅ΡΠ΅Π΄ Π½ΠΈΠΌ ΠΌΠ΅ΡΡΠΎ, ΡΠΊΡΠ°ΡΠΈΠ² ΠΏΡΠΎΠ΅ΠΌ Π±ΠΎΠ»ΡΡΠΈΠΌΠΈ ΠΈ Π΄Π»ΠΈΠ½Π½ΡΠΌΠΈ ΡΡΠΎΡΠ°ΠΌΠΈ. ΠΠ½ΡΠ΅ΡΡΠ΅Ρ ΡΡΡΠ΄ΠΈΠΈ Ρ ΠΏΠ°Π½ΠΎΡΠ°ΠΌΠ½ΡΠΌ ΠΎΠΊΠ½ΠΎΠΌ Π²ΡΠ³Π»ΡΠ΄ΠΈΡ ΡΠ»Π΅Π΄ΡΡΡΠΈΠΌ ΠΎΠ±ΡΠ°Π·ΠΎΠΌ: Ρ ΠΎΠ΄Π½ΠΎΠΉ ΠΈΠ· ΡΡΠ΅Π½ ΠΎΠ±ΡΡΡΡΠ°ΠΈΠ²Π°ΡΡ Π³ΠΎΡΡΠΈΠ½ΡΡ Π·ΠΎΠ½Ρ, Π½Π°Π΄ Π΄ΠΈΠ²Π°Π½ΠΎΠΌ ΡΠ°ΡΠΏΠΎΠ»Π°Π³Π°ΡΡ Π·Π΅ΡΠΊΠ°Π»ΠΎ. ΠΠΎΠΏΠΎΠ»Π½ΠΈΡΡ Π·ΠΎΠ½Ρ ΠΎΡΠ΄ΡΡ Π° ΠΌΠΎΠΆΠ½ΠΎ ΠΊΠΎΠ²ΡΠΎΠΌ ΠΈ Π½Π΅Π±ΠΎΠ»ΡΡΠΈΠΌ ΡΡΠ΅Π»Π»Π°ΠΆΠΎΠΌ Π΄Π»Ρ ΠΊΠ½ΠΈΠ³. Π’Π΅Π»Π΅Π²ΠΈΠ·ΠΎΡ ΠΈ ΠΏΡΠ΅Π΄ΠΌΠ΅ΡΡ Π΄Π΅ΠΊΠΎΡΠ° (ΠΊΠ°ΡΡΠΈΠ½Ρ, ΡΠ°ΡΡ) ΡΠ°ΡΠΏΠΎΠ»Π°Π³Π°ΡΡ Π½Π°ΠΏΡΠΎΡΠΈΠ² Π΄ΠΈΠ²Π°Π½Π°, ΠΊΡΡ Π½Π΅ ΠΎΡΠ²ΠΎΠ΄ΠΈΡΡΡ ΠΌΠ΅ΡΡΠΎ Π² ΡΠ³Π»Ρ Π²ΠΎΠ·Π»Π΅ ΠΌΠ΅Π΄ΠΈΠ°-Π·ΠΎΠ½Ρ. ΠΠ°ΠΆΠ½ΠΎ, ΡΡΠΎΠ±Ρ Π½Π° ΠΊΡΡ Π½Π΅ Π±ΡΠ»ΠΈ Π±Π»Π΅ΡΡΡΡΠΈΠ΅ ΠΏΠΎΠ²Π΅ΡΡ Π½ΠΎΡΡΠΈ ΠΈ ΡΠΎΠ²ΡΠ΅ΠΌΠ΅Π½Π½Π°Ρ Π±ΡΡΠΎΠ²Π°Ρ ΡΠ΅Ρ Π½ΠΈΠΊΠ°. ΠΠ±Π΅Π΄Π΅Π½Π½ΡΠΉ ΡΡΠΎΠ» Π·Π°ΠΌΠ΅Π½ΡΡΡ Π±Π°ΡΠ½ΠΎΠΉ ΡΡΠΎΠΉΠΊΠΎΠΉ, ΡΠ°Π·Π΄Π΅Π»ΡΡΡΠ΅ΠΉ Π·ΠΎΠ½Ρ.

ΠΠ΄ΠΈΠ½ ΠΈΠ· ΡΡΠ°Π½Π΄Π°ΡΡΠ½ΡΡ Π²Π°ΡΠΈΠ°Π½ΡΠΎΠ² ΠΎΠ΄Π½ΠΎΠΊΠΎΠΌΠ½Π°ΡΠ½ΠΎΠΉ ΠΊΠ²Π°ΡΡΠΈΡΡ οΌΒ 30 ΠΊΠ². ΠΌ.Β ΠΡΠΎ ΡΠ΅ΡΠ½ΡΠ΅ ΠΈ Π½Π΅ΡΠ΄ΠΎΠ±Π½ΡΠ΅ ΠΏΠΎΠΌΠ΅ΡΠ΅Π½ΠΈΡ, ΠΈΠ· ΠΊΠΎΡΠΎΡΡΡ ΠΌΠΎΠΆΠ½ΠΎ ΡΠ΄Π΅Π»Π°ΡΡΒ ΠΊΠ²Π°ΡΡΠΈΡΡ-ΡΡΡΠ΄ΠΈΡ. Π€ΠΎΡΠΎΒ ΡΠ΄Π°ΡΠ½ΡΡ Π²Π°ΡΠΈΠ°Π½ΡΠΎΠ²Β Π΄ΠΈΠ·Π°ΠΉΠ½Π°Β Π½Π°Π³Π»ΡΠ΄Π½ΠΎ Π΄Π΅ΠΌΠΎΠ½ΡΡΡΠΈΡΡΡΡ ΠΊΡΠ΅Π°ΡΠΈΠ²Π½ΡΠ΅Β ΠΈΠ΄Π΅ΠΈ Ρ ΠΎΠ΄Π½ΠΈΠΌ ΠΎΠΊΠ½ΠΎΠΌ,Β ΡΠΏΠΎΡΠΎΠ±Ρ,Β ΠΊΠ°ΠΊ ΠΎΠ³ΡΠ°Π½ΠΈΡΠΈΡΡ ΡΠΏΠ°Π»ΡΠ½Ρ ΠΎΡ ΠΊΡΡ Π½ΠΈ,Β ΡΡΠΈΠ»ΠΈ ΠΈ Π΄Π΅ΠΊΠΎΡ ΠΏΡΠΎΡΡΠΎΡΠ½ΠΎΠ³ΠΎ ΠΏΠΎΠΌΠ΅ΡΠ΅Π½ΠΈΡ.Β
ΠΠ΄Π΅ΠΈ Ρ ΠΎΠ΄Π½ΠΈΠΌ ΠΎΠΊΠ½ΠΎΠΌ ΠΈ Π±Π°Π»ΠΊΠΎΠ½ΠΎΠΌ
Π¦Π΅Π»Ρ, ΠΏΠΎΡΡΠ°Π²Π»Π΅Π½Π½Π°Ρ ΠΏΠ΅ΡΠ΅Π΄ ΠΎΡΠΎΡΠΌΠΈΡΠ΅Π»Π΅ΠΌ-ΠΏΠ»Π°Π½ΠΈΡΠΎΠ²ΡΠΈΠΊΠΎΠΌ ΠΏΡΠΎΡΡΡΠ°Π½ΡΡΠ²Π°, ΠΌΠΎΠΆΠ΅Ρ Π±ΡΡΡ ΡΠ°Π·Π½ΠΎΠΉ: ΠΊΠ²Π°ΡΡΠΈΡΠ° Π΄Π»Ρ Ρ ΠΎΠ»ΠΎΡΡΡΠΊΠ°, Π΄Π΅Π»ΠΎΠ²ΠΎΠΉ ΠΆΠ΅Π½ΡΠΈΠ½Ρ, Π½Π΅Π±ΠΎΠ»ΡΡΠΎΠ³ΠΎ ΡΠ΅ΠΌΠ΅ΠΉΡΡΠ²Π°, ΠΏΠ»Π°Π½ΠΈΡΡΡΡΠ΅Π³ΠΎ ΡΠΎ Π²ΡΠ΅ΠΌΠ΅Π½Π΅ΠΌ ΠΏΠ΅ΡΠ΅Π΅Ρ Π°ΡΡ Π² ΠΏΠΎΠΌΠ΅ΡΠ΅Π½ΠΈΠ΅ Ρ Π±ΠΎΠ»Π΅Π΅ ΠΎΠ±ΡΠΈΡΠ½ΡΠΌ ΠΏΡΠΎΡΡΡΠ°Π½ΡΡΠ²ΠΎΠΌ.

ΠΠΈΠ·Π°ΠΉΠ½ ΠΊΠ²Π°ΡΡΠΈΡΡ-ΡΡΡΠ΄ΠΈΠΈΒ ΡΡΠΈΡΡΠ²Π°Π΅Ρ Π½Π΅ΠΎΠ±Ρ ΠΎΠ΄ΠΈΠΌΠΎΠ΅ ΠΊΠΎΠ»ΠΈΡΠ΅ΡΡΠ²ΠΎ ΡΠΏΠ°Π»ΡΠ½ΡΡ ΠΌΠ΅ΡΡ, ΠΎΠ±Π΅Π΄Π΅Π½Π½ΡΡ Π·ΠΎΠ½Ρ, ΠΏΡΠΎΡΠ΅ΡΡΠΈΠΎΠ½Π°Π»ΡΠ½ΡΠΉ ΡΠ³ΠΎΠ» (ΠΊΠ°Π±ΠΈΠ½Π΅Ρ, Π±ΠΈΠ±Π»ΠΈΠΎΡΠ΅ΠΊΠ°, ΡΡΠΎΠ» Π΄Π»Ρ Π²ΡΠΏΠΎΠ»Π½Π΅Π½ΠΈΡ ΡΡΠΎΠΊΠΎΠ² ΠΈΠ»ΠΈ ΠΊΠΎΠΌΠΏΡΡΡΠ΅ΡΠ°, ΠΌΠΎΠ»ΡΠ±Π΅ΡΡ, ΡΠ°Π±ΠΎΡΠΈΠΉ ΡΡΠΎΠ»).
Π‘ΠΎΠ²Π΅Ρ!Β
ΠΡΠ΅ ΡΡΠΎ ΡΡΠΈΡΡΠ²Π°Π΅ΡΡΡ ΠΏΠΎ ΡΠΈΡΡΠ°ΡΠΈΠΈ, Π½ΠΎ Π² Π»ΡΠ±ΠΎΠΌ ΡΠ»ΡΡΠ°Π΅, Π΄Π»Ρ ΠΏΠΎΠ»Π½ΠΎΡΠ΅Π½Π½ΠΎΠ³ΠΎ ΠΏΡΠΎΠΆΠΈΠ²Π°Π½ΠΈΡ Π½Π΅ΠΎΠ±Ρ ΠΎΠ΄ΠΈΠΌΡ ΡΠ΅ΡΡΡΠ΅ ΡΡΠ°Π½Π΄Π°ΡΡΠ½ΡΠ΅ ΡΡΠ½ΠΊΡΠΈΠΎΠ½Π°Π»ΡΠ½ΡΠ΅ Π·ΠΎΠ½Ρ β ΠΎΠ±Π΅Π΄Π΅Π½Π½Π°Ρ (Π΄Π»Ρ ΠΏΡΠΈΠ΅ΠΌΠ° ΠΏΠΈΡΠΈ ΠΈΠ»ΠΈ Π³ΠΎΡΡΠ΅ΠΉ), ΡΠΏΠ°Π»ΡΠ½Π°Ρ (ΠΌΠΎΠΆΠ½ΠΎ ΡΠΎΠ²ΠΌΠ΅ΡΡΠΈΡΡ ΡΠΎΠ½ ΠΈ ΠΎΡΠ΄ΡΡ ), ΡΠ°Π±ΠΎΡΠ°Ρ (Π½Π΅ΡΠ΅Π΄ΠΊΠΎ ΠΈΡΠΏΠΎΠ»ΡΠ·ΡΠ΅ΡΡΡ ΠΈ ΠΊΠ°ΠΊ Π·ΠΎΠ½Π° ΠΎΡΠ΄ΡΡ Π°), Π΄Π»Ρ ΠΏΡΠΈΠ³ΠΎΡΠΎΠ²Π»Π΅Π½ΠΈΡ ΠΏΠΈΡΠΈ.
Π€ΠΎΡΠΎΒ Π½Π° ΡΠ°ΠΉΡΠ°Ρ , ΠΏΠΎΡΠ²ΡΡΠ΅Π½Π½ΡΡ ΡΠ΅ΠΌΠΎΠ½ΡΡ ΠΈ ΠΎΠ±ΡΡΡΡΠΎΠΉΡΡΠ²Ρ ΠΆΠΈΠ»ΡΡ, Π΄Π΅ΠΌΠΎΠ½ΡΡΡΠΈΡΡΡΡ Π½Π΅ΡΠΊΠΎΠ»ΡΠΊΠΎ ΡΠ°ΡΡ ΠΎΠΆΠΈΡ Π²Π°ΡΠΈΠ°Π½ΡΠΎΠ² ΡΠ°Π·Π³ΡΠ°Π½ΠΈΡΠ΅Π½ΠΈΡ ΡΡΠ½ΠΊΡΠΈΠΎΠ½Π°Π»ΡΠ½ΠΎΠ³ΠΎ ΠΏΡΠΎΡΡΡΠ°Π½ΡΡΠ²Π° (Π·ΠΎΠ½ΠΈΡΠΎΠ²Π°Π½ΠΈΡ).

ΠΠ° ΠΏΠ»ΠΎΡΠ°Π΄ΠΈ Π²Β 30 ΠΊΠ². ΠΌΒ ΠΈΡ ΠΌΠΎΠΆΠ½ΠΎ ΠΏΡΠΈΠΌΠ΅Π½ΠΈΡΡ Π½Π΅ΡΠΊΠΎΠ»ΡΠΊΠΎ, ΠΊΠ°ΠΊ Π² ΠΌΠΎΠ½ΠΎΠ²Π°ΡΠΈΠ°Π½ΡΠ΅ (ΠΎΠ΄ΠΈΠ½Π°ΠΊΠΎΠ²ΡΠ΅ Π΄Π»Ρ Π²ΡΠ΅Ρ Π³ΡΠ°Π½ΠΈΡ, ΡΠ°ΠΊ ΠΈ Π² ΠΏΡΠΎΠ΄ΡΠΊΡΠΈΠ²Π½ΠΎΠΉ ΠΊΠΎΠΌΠ±ΠΈΠ½Π°ΡΠΈΠΈ.

ΠΠ΅Π±Π΅Π»Ρ β Π»Π΅Π³ΠΊΠΈΠΉ, Π½ΠΎ Π½Π΅ΡΠ°ΡΠΈΠΎΠ½Π°Π»ΡΠ½ΡΠΉ ΡΠΏΠΎΡΠΎΠ±, ΠΏΠΎΡΠΊΠΎΠ»ΡΠΊΡ ΡΠΊΠ°ΡΡ ΠΈ Π³Π°ΡΠ΄Π΅ΡΠΎΠ±Ρ ΠΈΠΌΠ΅ΡΡ Π½Π΅ΡΡΡΠ΅ΡΠΈΡΠ½ΡΡ ΠΈΠ·Π½Π°Π½ΠΊΡ, ΠΎΡΠ½ΠΈΠΌΠ°ΡΡ Π΄ΡΠ°Π³ΠΎΡΠ΅Π½Π½ΠΎΠ΅ ΠΌΠ΅ΡΡΠΎ ΠΈ ΡΠΌΠ΅Π½ΡΡΠ°ΡΡ ΠΎΠ±ΡΡΡ ΠΎΡΠ²Π΅ΡΠ΅Π½Π½ΠΎΡΡΡΒ ΠΊΠ²Π°ΡΡΠΈΡΡ-ΡΡΡΠ΄ΠΈΠΈ Ρ ΠΎΠ΄Π½ΠΈΠΌ ΠΎΠΊΠ½ΠΎΠΌ.

Π¨ΡΠΎΡΡ ΠΈΠ»ΠΈ Π΄Π΅ΠΊΠΎΡΠ°ΡΠΈΠ²Π½ΡΠΉ ΡΠ΅ΠΊΡΡΠΈΠ»Ρ ΠΌΠΎΠΆΠ½ΠΎ Π·Π°Π΄Π²ΠΈΠ³Π°ΡΡ ΠΈ ΡΠ°Π·Π΄Π²ΠΈΠ³Π°ΡΡ, Π΅ΡΠ»ΠΈ ΡΠ΄Π΅Π»Π°ΡΡ Π΄Π»Ρ ΡΡΠΎΠ³ΠΎ Π΄ΠΎΠΏΠΎΠ»Π½ΠΈΡΠ΅Π»ΡΠ½ΡΠ΅ ΠΏΡΠΈΡΠΏΠΎΡΠΎΠ±Π»Π΅Π½ΠΈΡ, Π·Π°ΠΊΡΡΠ²Π°Ρ ΠΊΡΠΎΠ²Π°ΡΡ ΠΎΡ ΠΎΠ±ΠΈΡΠ°ΡΠ΅Π»Π΅ΠΉ ΠΊΠ²Π°ΡΡΠΈΡΡ ΠΈΠ»ΠΈ ΠΈΡ Π³ΠΎΡΡΠ΅ΠΉ.

ΠΠ°ΡΠ½Π°Ρ ΡΡΠΎΠΉΠΊΠ° ΠΌΠΎΠΆΠ΅Ρ ΡΠ°ΡΠΏΠΎΠ»Π°Π³Π°ΡΡΡΡ ΠΌΠ΅ΠΆΠ΄Ρ ΠΊΠΎΠΌΠ½Π°ΡΠΎΠΉΒ ΠΈ Π»ΠΎΠ΄ΠΆΠΈΠ΅ΠΉ,Β Π΅ΡΠ»ΠΈ ΠΈΡ ΠΎΠ±ΡΠ΅Π΄ΠΈΠ½ΡΡΡ, ΠΈΠ»ΠΈ ΠΌΠ΅ΠΆΠ΄Ρ Π·ΠΎΠ½ΠΎΠΉ ΠΏΡΠΈΠ³ΠΎΡΠΎΠ²Π»Π΅Π½ΠΈΡ ΠΏΠΈΡΠΈ ΠΈ ΠΌΠ΅ΡΡΠΎΠΌ Π΅Π΅ ΠΏΡΠΈΠ΅ΠΌΠ°.
Π§ΠΈΡΠ°ΠΉΡΠ΅ ΡΠ°ΠΊΠΆΠ΅:Β ΠΠΎΠΌ ΠΡΠΈΡΠ° ΠΠ²Π°Π½ΡΠ° Π² ΠΠΎΡ-ΠΠ½Π΄ΠΆΠ΅Π»Π΅ΡΠ΅ (ΡΠΎΡΠΎ)

ΠΠ΅ΡΠ΅Π½ΠΎΡΠ½ΡΠ΅ ΠΏΠ΅ΡΠ΅Π³ΠΎΡΠΎΠ΄ΠΊΠΈ β ΡΠ°ΡΠΏΡΠΎΡΡΡΠ°Π½Π΅Π½Π½ΡΠΉ ΠΏΡΠΈΠ΅ΠΌ Π²Β Π΄ΠΈΠ·Π°ΠΉΠ½Π΅ ΠΊΠ²Π°ΡΡΠΈΡΡ-ΡΡΡΠ΄ΠΈΠΈ,Β ΠΏΠΎΠ·Π²ΠΎΠ»ΡΡΡΠΈΠΉ Π»Π΅Π³ΠΊΠΎ ΠΌΠΎΠ΄Π΅Π»ΠΈΡΠΎΠ²Π°ΡΡ ΠΏΡΠΎΡΡΡΠ°Π½ΡΡΠ²ΠΎΒ 30 ΠΊΠ². ΠΌΒ ΠΏΡΠΈ Π²ΠΎΠ·Π½ΠΈΠΊΡΠ΅ΠΉ Π½Π΅ΠΎΠ±Ρ ΠΎΠ΄ΠΈΠΌΠΎΡΡΠΈ Π² ΡΠ°Π·Π½ΠΎΠ΅ Π²ΡΠ΅ΠΌΡ ΡΡΡΠΎΠΊ, Π² Π±ΡΠ΄Π½ΠΈ ΠΈ Π²ΡΡ ΠΎΠ΄Π½ΡΠ΅.

Π€Π°Π»ΡΡΠΈΠ²ΡΠ΅ ΠΏΠ΅ΡΠ΅Π³ΠΎΡΠΎΠ΄ΠΊΠΈ Ρ Π΄Π΅ΠΊΠΎΡΠ°ΡΠΈΠ²Π½ΡΠΌΠΈ Π²ΡΡΠ°Π²ΠΊΠ°ΠΌΠΈ, ΠΈΠ· ΡΠΎΠ²ΡΠ΅ΠΌΠ΅Π½Π½ΡΡ ΡΡΡΠΎΠΈΡΠ΅Π»ΡΠ½ΡΡ ΠΌΠ°ΡΠ΅ΡΠΈΠ°Π»ΠΎΠ², ΡΠΎΡ ΡΠ°Π½ΡΡΡΠΈΠ΅ ΠΎΡΠ²Π΅ΡΠ΅Π½Π½ΠΎΡΡΡ ΠΈ ΠΏΡΠ΅Π΄Π΅Π»ΡΠ½ΠΎ ΡΠ°Π·Π³ΡΠ°Π½ΠΈΡΠΈΠ²Π°ΡΡΠΈΠ΅ ΠΊΠ²Π°Π΄ΡΠ°ΡΡ.

ΠΠ°Β ΡΠΎΡΠΎΒ ΠΏΡΠ΅Π΄Π΅Π»ΡΠ½ΠΎ ΠΏΡΠΎΡΡΠΎΠ³ΠΎΒ Π΄ΠΈΠ·Π°ΠΉΠ½Π°Β ΠΌΠΎΠΆΠ½ΠΎ Π½Π°ΠΉΡΠΈ Π²ΡΠ΅Π³Π΄Π° Π°ΠΊΡΡΠ°Π»ΡΠ½ΠΎΠ΅ ΡΠ΅ΡΠ΅Π½ΠΈΠ΅ β Π·ΠΎΠ½ΠΈΡΠΎΠ²Π°Π½ΠΈΠ΅ ΠΏΠΎΠΌΠ΅ΡΠ΅Π½ΠΈΡ ΡΠ²Π΅ΡΠΎΠ²ΡΠΌ ΠΎΡΠΎΡΠΌΠ»Π΅Π½ΠΈΠ΅ΠΌ, ΠΈΡΠΏΠΎΠ»ΡΠ·ΠΎΠ²Π°Π½ΠΈΠ΅ΠΌ ΡΠ°Π·Π½ΡΡ ΡΡΡΠΎΠΈΡΠ΅Π»ΡΠ½ΡΡ ΠΌΠ°ΡΠ΅ΡΠΈΠ°Π»ΠΎΠ² Π΄Π»Ρ ΡΡΠ΅Π½, ΠΏΠΎΡΠΎΠ»ΠΊΠ° ΠΈΠ»ΠΈ ΠΏΠΎΠ»Π°.

Π ΡΠ°ΠΊΠΆΠ΅ Π΄Π΅ΠΊΠΎΡΠ°ΡΠΈΠ²Π½ΡΠΌΠΈ ΠΏΠ°Π½Π½ΠΎ, ΡΠΎΡΠΏΠΈΡΡΡ ΡΡΠ΅Π½, ΠΏΠΎΠ΄ΡΠ²Π΅ΡΠΊΠΎΠΉ ΠΈΠ»ΠΈ ΠΈΡΠΊΡΡΡΡΠ²Π΅Π½Π½ΡΠΌ ΠΎΡΠ²Π΅ΡΠ΅Π½ΠΈΠ΅ΠΌ.
ΠΠ±ΡΠ°ΡΠΈΡΠ΅ Π²Π½ΠΈΠΌΠ°Π½ΠΈΠ΅!
ΠΠ΅ΡΡΠ°Π½Π΄Π°ΡΡΠ½ΡΠ΅ ΠΊΠ²Π°ΡΡΠΈΡΡ ΡΡΠ΅Π±ΡΡΡ Π½Π΅ΡΡΠΈΠ²ΠΈΠ°Π»ΡΠ½ΠΎΠ³ΠΎ ΠΏΠΎΠ΄Ρ ΠΎΠ΄Π°: Π΅ΡΠ»ΠΈΒ ΠΊΠ²Π°ΡΡΠΈΡΠ°-ΡΡΡΠ΄ΠΈΡ Ρ Π΄Π²ΡΠΌΡ ΠΎΠΊΠ½Π°ΠΌΠΈ,Β ΠΎΠ³ΡΠ°Π½ΠΈΡΠ΅Π½Π½ΡΠΌ ΠΏΡΠΎΡΡΡΠ°Π½ΡΡΠ²ΠΎΠΌ ΡΡΠ΅Π½, Π²ΡΡ ΠΎΠ΄ΠΎΠΌ Π±ΡΠ΄Π΅Ρ Π΄Π΅ΡΠ΅Π²ΡΠ½Π½ΡΠΉ ΠΏΠΎΠ΄ΠΈΡΠΌ.
ΠΡΠΎ ΠΊΡΠ΅Π°ΡΠΈΠ²Π½Π°Ρ ΠΈΠ΄Π΅Ρ, ΡΠ°ΡΡΠΎ ΠΈΡΠΏΠΎΠ»ΡΠ·ΡΠ΅ΠΌΠ°Ρ Π² ΡΠΎΠ²ΡΠ΅ΠΌΠ΅Π½Π½ΠΎΠΌΒ Π΄ΠΈΠ·Π°ΠΉΠ½Π΅,Β Π±Π΅Π· ΠΎΡΠΎΠ±ΡΡ ΠΎΠ³ΡΠ°Π½ΠΈΡΠ΅Π½ΠΈΠΉ β Π΄Π»Ρ ΡΠ°Π±ΠΎΡΠ΅Π³ΠΎ, ΡΠΏΠ°Π»ΡΠ½ΠΎΠ³ΠΎ ΠΈΠ»ΠΈ ΠΎΠ±Π΅Π΄Π΅Π½Π½ΠΎΠ³ΠΎ ΠΏΠΎΠΌΠ΅ΡΠ΅Π½ΠΈΡ.

ΠΠΎΠ·Π²ΡΡΠ΅Π½ΠΈΠ΅ ΠΎΠ±ΡΡΡΡΠ°ΠΈΠ²Π°Π΅ΡΡΡ Π²ΡΠ΄Π²ΠΈΠΆΠ½ΡΠΌΠΈ ΡΡΠΈΠΊΠ°ΠΌΠΈ, Π² ΠΊΠΎΡΠΎΡΡΡ ΠΌΠΎΠΆΠ½ΠΎ Ρ ΡΠ°Π½ΠΈΡΡ Π²Π΅ΡΠΈ, ΠΈΠ³ΡΡΡΠΊΠΈ, ΡΠ΅Π·ΠΎΠ½Π½ΡΡ ΠΎΠ΄Π΅ΠΆΠ΄Ρ, ΠΈΠ½ΡΡΡΡΠΌΠ΅Π½ΡΡ, ΠΎΡΠ΄Π΅Π»ΡΠ΅ΡΡΡ ΡΠ°Π»ΡΡΠΏΠ΅ΡΠ΅Π³ΠΎΡΠΎΠ΄ΠΊΠ°ΠΌΠΈ β ΡΠ΅ΡΠ΅ΡΠΊΠΎΠΉ ΠΈΠ· Π΄Π΅ΡΠ΅Π²Π° Π΄Π»Ρ ΠΊΠΎΠΌΠ½Π°ΡΠ½ΡΡ ΡΠ°ΡΡΠ΅Π½ΠΈΠΉ, ΠΊΠ½ΠΈΠΆΠ½ΡΠΌΠΈ ΠΏΠΎΠ»ΠΊΠ°ΠΌΠΈ, ΡΡΠ°ΠΆΠ΅ΡΠΊΠΎΠΉ Π΄Π»Ρ ΡΡΠ²Π΅Π½ΠΈΡΠΎΠ² ΠΈΠ»ΠΈ ΠΏΡΠ΅Π΄ΠΌΠ΅ΡΠΎΠ² ΠΈΡΠΊΡΡΡΡΠ²Π°.

Π€ΠΎΡΠΎΒ ΠΊΡΠ΅Π°ΡΠΈΠ²Π½ΡΡ ΡΠ΅ΡΠ΅Π½ΠΈΠΉ ΠΏΡΠΎΠ±Π»Π΅ΠΌ ΡΠΎ ΡΠ²ΠΎΠ±ΠΎΠ΄Π½ΡΠΌ ΠΏΡΠΎΡΡΡΠ°Π½ΡΡΠ²ΠΎΠΌ ΠΏΡΠ΅Π΄Π»Π°Π³Π°Π΅Ρ ΡΠ΄Π΅Π»Π°ΡΡΒ Π΄ΠΈΠ·Π°ΠΉΠ½ 30 ΠΊΠ². ΠΌΒ Π΄Π²ΡΡ ΡΡΠΎΠ²Π½Π΅Π²ΡΠΌ, ΠΈ ΡΡΠΎ Π°ΠΊΡΡΠ°Π»ΡΠ½ΠΎ Π½Π΅ ΡΠΎΠ»ΡΠΊΠΎ Π² ΠΊΠ²Π°ΡΡΠΈΡΠ°Ρ Ρ Π²ΡΡΠΎΠΊΠΈΠΌΠΈ ΠΏΠΎΡΠΎΠ»ΠΊΠ°ΠΌΠΈ.
Π€Π°ΠΊΡ!Β
Π‘ΠΏΠ°Π»ΡΠ½ΠΎΠ΅Β ΠΌΠ΅ΡΡΠΎ Π΄Π»Ρ ΡΠ΅Π±Π΅Π½ΠΊΠ° ΠΎΡΠ³Π°Π½ΠΈΡΠ½ΠΎ Π²ΠΏΠΈΡΠ΅ΡΡΡ Π½Π°Π΄ Π·ΠΎΠ½ΠΎΠΉ ΠΎΡΠ΄ΡΡ Π°, Π΅ΡΠ»ΠΈ ΠΏΠΎΠ΄ ΠΎΠ±ΡΠ°Π·ΠΎΠ²Π°Π²ΡΠΈΠΌΡΡ Π½Π°Π²Π΅ΡΠΎΠΌ ΡΠ΄Π΅Π»Π°ΡΡ Π΄ΠΎΠΏΠΎΠ»Π½ΠΈΡΠ΅Π»ΡΠ½ΡΡ ΠΏΠΎΠ΄ΡΠ²Π΅ΡΠΊΡ.
ΠΠ° Π½Π΅ΠΊΠΎΡΠΎΡΡΡ Β ΡΠΎΡΠΎΒ ΠΏΡΠ΅ΠΎΠ±ΡΠ°ΠΆΠ΅Π½Π½ΡΡ ΠΏΠΎΠΌΠ΅ΡΠ΅Π½ΠΈΠΉ Π²Β 30 ΠΊΠ². ΠΌΒ ΠΌΠΎΠΆΠ½ΠΎ ΡΠ²ΠΈΠ΄Π΅ΡΡ Π³Π°ΡΠ΄Π΅ΡΠΎΠ±Π½ΡΡ Π½Π° Π²ΡΠΎΡΠΎΠΌ ΡΡΠΎΠ²Π½Π΅.

ΠΠ΅ΡΡΠ½ΠΈΡΠ°, Π΄Π»Ρ Π΄ΠΎΡΡΠ³Π°Π΅ΠΌΠΎΡΡΠΈ ΠΏΠΎ Π²ΡΠ΅ΠΉ Π΄Π»ΠΈΠ½Π΅ Π²ΡΠΎΡΠΎΠ³ΠΎ ΡΡΠΎΠ²Π½Ρ, ΡΠ°Π·ΠΌΠ΅ΡΠ°Π΅ΡΡΡ Π½Π° ΠΌΠ΅ΡΠ°Π»Π»ΠΈΡΠ΅ΡΠΊΠΈΡ ΠΏΠΎΠ»ΠΎΠ·ΡΡΡ . ΠΠΌΠ΅ΡΡΠ΅ Ρ ΠΏΠ΅ΡΠ΅Π³ΠΎΡΠΎΠ΄ΠΊΠΎΠΉ ΠΈΠ· Π³ΠΈΠΏΡΠΎΠΊΠ°ΡΡΠΎΠ½Π° ΠΈ Π΄Π΅ΠΊΠΎΡΠ°ΡΠΈΠ²Π½ΡΠΌ ΠΎΠΊΠ½ΠΎΠΌ ΠΎΠ½Π° ΡΡΠ°Π½ΠΎΠ²ΠΈΡΡΡ ΠΎΡΠ½ΠΎΠ²Π½ΡΠΌ ΡΠ»Π΅ΠΌΠ΅Π½ΡΠΎΠΌ Π²Β Π΄ΠΈΠ·Π°ΠΉΠ½Π΅ ΠΊΠ²Π°ΡΡΠΈΡΡ-ΡΡΡΠ΄ΠΈΠΈΒ Ρ ΠΏΠΎΡΠΎΠ»ΠΊΠ°ΠΌΠΈ ΡΡΠ°Π½Π΄Π°ΡΡΠ½ΠΎΠΉ Π²ΡΡΠΎΡΡ.

ΠΠ΄Π΅ΠΈ Ρ Π»ΠΎΠ΄ΠΆΠΈΠ΅ΠΉ
ΠΡΠ»ΠΈΒ ΠΊΠ²Π°ΡΡΠΈΡΠ°-ΡΡΡΠ΄ΠΈΡΒ Ρ Π΄Π²ΡΠΌΡ ΠΎΠΊΠ½Π°ΠΌΠΈ ΠΈ Π±Π°Π»ΠΊΠΎΠ½ΠΎΠΌ, ΡΠΎΒ ΠΏΠΎΡΠ»Π΅Π΄Π½ΠΈΠΉ Π½Π΅ΠΏΡΠ΅ΠΌΠ΅Π½Π½ΠΎ ΠΈΡΠΏΠΎΠ»ΡΠ·ΡΠ΅ΡΡΡ ΠΊΠ°ΠΊ ΠΎΡΠ³Π°Π½ΠΈΡΠ½ΠΎΠ΅ ΠΏΡΠΎΠ΄ΠΎΠ»ΠΆΠ΅Π½ΠΈΠ΅ ΡΡΠ½ΠΊΡΠΈΠΎΠ½Π°Π»ΡΠ½ΠΎΠΉ Π·ΠΎΠ½Ρ.

Π ΠΊΠ°ΡΠ΅ΡΡΠ²Π΅ ΡΠ°Π·Π³ΡΠ°Π½ΠΈΡΠ΅Π½ΠΈΡ ΠΌΠΎΠΆΠ½ΠΎ ΠΏΡΠΈΠΌΠ΅Π½ΡΡΡ ΡΠ°ΡΡΠΈΡΠ½ΡΡ ΠΈΠΌΠΈΡΠ°ΡΠΈΡ ΠΏΠ΅ΡΠ΅Π³ΠΎΡΠΎΠ΄ΠΊΠΈ Ρ Π½Π΅ΠΎΠ±ΡΡΠ½ΡΠΌΠΈ ΠΎΡΠ΅ΡΡΠ°Π½ΠΈΡΠΌΠΈ, ΠΆΠ°Π»ΡΠ·ΠΈ ΠΎΡ ΠΏΠΎΡΠΎΠ»ΠΊΠ° Π΄ΠΎ ΠΏΠΎΠ»Π°. ΠΠΈΠ·Π°ΠΉΠ½Π΅ΡΡ ΡΠ°ΡΡΠΎ Π·ΠΎΠ½ΠΈΡΡΡΡ Π½Π΅Π±ΠΎΠ»ΡΡΠΎΠ΅ ΠΏΡΠΎΡΡΡΠ°Π½ΡΡΠ²ΠΎ Π²Β 30 ΠΊΠ². ΠΌΒ ΠΎΠΊΠ½Π°ΠΌΠΈ ΠΈΠ»ΠΈ Π±Π°Π»ΠΊΠΎΠ½ΠΎΠΌ β ΡΡΠΎ ΠΏΠΎΠ·Π²ΠΎΠ»ΡΠ΅Ρ ΡΠΎΡ ΡΠ°Π½ΠΈΡΡ ΠΎΠ±ΠΈΠ»ΡΠ½ΠΎΠ΅ Π΅ΡΡΠ΅ΡΡΠ²Π΅Π½Π½ΠΎΠ΅ ΠΎΡΠ²Π΅ΡΠ΅Π½ΠΈΠ΅, Π½Π΅ ΡΠ΅ΡΡΡ Π½ΠΈ ΡΠ²Π΅ΡΠ°, Π½ΠΈ ΠΏΡΠΎΡΡΡΠ°Π½ΡΡΠ²Π°.

Π‘ ΠΎΠ΄Π½ΠΈΠΌΒ Π½Π΅Π·Π°ΠΊΡΡΡΡΠΌΒ Π±Π°Π»ΠΊΠΎΠ½ΠΎΠΌΒ Π²Π°ΡΠΈΠ°Π½ΡΠΎΠ² ΠΌΠ΅Π½ΡΡΠ΅, Π½ΠΎ ΠΈ Π»ΠΎΠ΄ΠΆΠΈΡ, Π΅ΡΠ»ΠΈ ΠΏΠ»Π°Π½ΠΈΡΡΠ΅ΡΡΡ Π΅Π΅ Π·Π°Π΄Π΅ΠΉΡΡΠ²ΠΎΠ²Π°ΡΡ, Π½ΡΠΆΠ΄Π°Π΅ΡΡΡ Π² Π΄ΠΎΠΏΠΎΠ»Π½ΠΈΡΠ΅Π»ΡΠ½ΠΎΠΌ ΡΡΠ΅ΠΏΠ»Π΅Π½ΠΈΠΈ.
ΠΠ°ΠΆΠ½ΠΎ!
ΠΡΠ»ΠΈ ΡΡΠΎΠ³ΠΎ Π½Π΅ ΡΠ΄Π΅Π»Π°ΡΡ, Π² Ρ ΠΎΠ»ΠΎΠ΄Π½ΠΎΠ΅ Π²ΡΠ΅ΠΌΡ Π³ΠΎΠ΄Π° Π² ΠΊΠ²Π°ΡΡΠΈΡΠ΅ ΠΎΡ Ρ ΠΎΠ»ΠΎΠ΄Π° Π½Π΅ ΡΠΏΠ°ΡΠ΅Ρ ΠΈ ΠΊΠΎΠ½Π΄ΠΈΡΠΈΠΎΠ½Π΅Ρ.
ΠΡΠΎΡΡΠΎΡ Π΄Π»Ρ ΡΠ²ΠΎΡΡΠ΅ΡΡΠ²Π° ΠΏΡΠ°ΠΊΡΠΈΡΠ΅ΡΠΊΠΈ Π½ΠΈΡΠ΅ΠΌ Π½Π΅ ΠΎΠ³ΡΠ°Π½ΠΈΡΠ΅Π½. ΠΡΠΎΠ΄ΠΎΠ»ΠΆΠ΅Π½ΠΈΠ΅ Π·ΠΎΠ½Ρ ΠΎΡΠ΄ΡΡ Π°, Ρ Π΄Π²ΡΠΌΡ ΠΊΡΠ΅ΡΠ»Π°ΠΌΠΈ ΠΈ ΡΡΠΎΠ»ΠΈΠΊΠΎΠΌ, ΠΊΠΎΠΌΠ½Π°ΡΠ½ΡΠΌΠΈ ΡΠ°ΡΡΠ΅Π½ΠΈΡΠΌΠΈ β ΠΌΠΈΠ½ΠΈ-ΠΎΡΠ°Π½ΠΆΠ΅ΡΠ΅Ρ, Π½Π° ΠΊΠΎΡΠΎΡΠΎΠΉ ΠΎΡΠ΄ΡΡ Π°ΡΡ, ΠΏΡΡΡ ΡΠ°ΠΉ ΠΈΠ»ΠΈ ΠΊΠΎΡΠ΅, ΠΏΡΠΈΠ½ΠΈΠΌΠ°ΡΡ Π³ΠΎΡΡΠ΅ΠΉ.

ΠΠ΅ΡΡΠΊΠ°Ρ, Ρ ΠΏΠΈΡΡΠΌΠ΅Π½Π½ΡΠΌ ΡΡΠΎΠ»ΠΎΠΌ, ΠΊΠ½ΠΈΠΆΠ½ΡΠΌΠΈ ΠΏΠΎΠ»ΠΊΠ°ΠΌΠΈ, ΡΡΠΈΠΊΠ°ΠΌΠΈ ΠΏΠΎΠ΄ Π±Π°Π»ΠΊΠΎΠ½Π½ΡΠΌΠΈ ΠΎΠΊΠ½Π°ΠΌΠΈ, Π΄Π΅ΠΊΠΎΡΠ°ΡΠΈΠ²Π½ΡΠΌΠΈ ΡΠ»Π΅ΠΌΠ΅Π½ΡΠ°ΠΌΠΈ.

ΠΠ°ΡΡΠ΅ΡΡΠΊΠ°Ρ Π΄Π»Ρ Ρ ΠΎΠ·ΡΠΈΠ½Π° β ΡΠΎ ΡΡΠ΅Π»Π»Π°ΠΆΠΎΠΌ Π΄Π»Ρ ΠΈΠ½ΡΡΡΡΠΌΠ΅Π½ΡΠΎΠ², ΠΊΠΈΡΡΠ΅ΠΉ ΠΈ ΠΊΡΠ°ΡΠΎΠΊ, Ρ Π²Π΅ΡΡΡΠ°ΠΊΠΎΠΌ, ΠΌΠΎΠ»ΡΠ±Π΅ΡΡΠΎΠΌ ΠΈ ΡΠ΄ΠΎΠ±Π½ΡΠΌ ΠΊΡΠ΅ΡΠ»ΠΎΠΌ.

Π£Π΄ΠΎΠ±Π½ΠΎΠ΅ ΡΠΏΠ°Π»ΡΠ½ΠΎΠ΅ ΠΌΠ΅ΡΡΠΎ Ρ Π½Π°Π΄ΡΠ²Π½ΡΠΌ ΠΈΠ»ΠΈ ΠΎΡΡΠΎΠΏΠ΅Π΄ΠΈΡΠ΅ΡΠΊΠΈΠΌ ΠΌΠ°ΡΡΠ°ΡΠΎΠΌ, ΡΡΠΌΠ±ΠΎΡΠΊΠΎΠΉ ΠΈ Π½ΠΎΡΠ½ΠΈΠΊΠΎΠΌ.

ΠΡΡΠ΅ΠΊΡΠ½Π°Ρ ΠΊΠΎΠΌΠ±ΠΈΠ½Π°ΡΠΈΡ ΠΈΠ· ΠΊΠ»Π°Π΄ΠΎΠ²ΠΎΠΉ ΠΈ Π»ΡΠ±ΠΎΠΉ Π΄ΡΡΠ³ΠΎΠΉ Π·ΠΎΠ½Ρ β Π΄ΠΎΡΡΠ°ΡΠΎΡΠ½ΠΎ ΡΠ΄Π΅Π»Π°ΡΡ Π·Π°ΠΊΡΡΠ²Π°ΡΡΠΈΠ΅ΡΡ ΡΡΠΈΠΊΠΈ ΠΈ ΠΏΠΎΡΡΠ°Π²ΠΈΡΡ Π½Π΅ΠΎΠ±Ρ ΠΎΠ΄ΠΈΠΌΡΡ ΠΌΠ΅Π±Π΅Π»Ρ.

ΠΠ°Β ΡΠΎΡΠΎΒ β ΠΈΠ½ΡΠ΅ΡΠ΅ΡΠ½ΡΠ΅ ΠΏΡΠΈΠΌΠ΅ΡΡ ΠΈΡΠΏΠΎΠ»ΡΠ·ΠΎΠ²Π°Π½ΠΈΡ Π»ΠΎΠ΄ΠΆΠΈΠΈ. ΠΡΠΎ Π½Π΅ Π½Π°ΡΡΠΎΡΡΠ΅Π»ΡΠ½ΡΠ΅ ΡΠ΅ΠΊΠΎΠΌΠ΅Π½Π΄Π°ΡΠΈΠΈ, Π½ΠΎ Π½Π°Π³Π»ΡΠ΄Π½Π°Ρ Π΄Π΅ΠΌΠΎΠ½ΡΡΡΠ°ΡΠΈΡ ΡΠΎΠ³ΠΎ, ΠΊΠ°ΠΊ ΠΌΠΎΠΆΠ½ΠΎ ΡΠ΅Π°Π»ΠΈΠ·ΠΎΠ²Π°ΡΡ Π΄Π°ΠΆΠ΅ Π½Π΅Π±ΠΎΠ»ΡΡΠΎΠ΅ ΠΏΡΠΎΡΡΡΠ°Π½ΡΡΠ²ΠΎ, ΡΠ΄Π΅Π»Π°ΡΡ Π΅Π³ΠΎ ΠΎΡΠ΄Π΅Π»ΡΠ½ΠΎΠΉ Π·ΠΎΠ½ΠΎΠΉ ΠΈΠ»ΠΈ ΠΏΡΠΎΠ΄ΠΎΠ»ΠΆΠ΅Π½ΠΈΠ΅ΠΌ ΡΠΆΠ΅ Π½Π°ΡΠ°ΡΠΎΠΉ Π² ΠΊΠΎΠΌΠ½Π°ΡΠ΅ ΠΎΡΠΈΠ³ΠΈΠ½Π°Π»ΡΠ½ΠΎΠΉ ΠΊΠΎΠΌΠΏΠΎΠ·ΠΈΡΠΈΠΈ. ΠΡΠ΄Π΅Π»ΠΈΡΡ Π±Π°Π»ΠΊΠΎΠ½ ΠΈΠ»ΠΈ Π»ΠΎΠ΄ΠΆΠΈΡ ΠΌΠΎΠΆΠ½ΠΎ Π»ΡΠ±ΡΠΌΠΈ Π΄ΡΡΠ³ΠΈΠΌΠΈ ΡΡΠ΅Π΄ΡΡΠ²Π°ΠΌΠΈ, ΠΏΡΠΈΠΌΠ΅Π½ΡΠ΅ΠΌΡΠΌΠΈ Π² ΡΠ΅ΡΠ΅Π½ΠΈΡΡ Π΄ΠΈΠ·Π°ΠΉΠ½Π΅ΡΠΎΠ².

ΠΠ°ΠΊ ΠΎΠ³ΡΠ°Π½ΠΈΡΠΈΡΡ ΡΠΏΠ°Π»ΡΠ½Ρ ΠΎΡ ΠΊΡΡ Π½ΠΈ
Π₯ΠΎΠ»ΠΎΡΡΡΠΊΠΎΠ² ΠΈ Π±ΠΈΠ·Π½Π΅Ρ-Π»Π΅Π΄ΠΈ ΡΠ΅Π΄ΠΊΠΎ Π·Π°Π±ΠΎΡΠΈΡ ΠΏΡΠΎΠ±Π»Π΅ΠΌΠ°,Β ΠΊΠ°ΠΊ ΠΎΠ³ΡΠ°Π½ΠΈΡΠΈΡΡΒ ΠΌΠ΅ΡΡΠΎ Π΄Π»Ρ Π½ΠΎΡΠ½ΠΎΠ³ΠΎ ΡΠ½Π° ΠΈ ΠΏΡΠΈΠ³ΠΎΡΠΎΠ²Π»Π΅Π½ΠΈΡ ΠΏΠΈΡΠΈ. ΠΠ½ΠΈ ΡΠ΄Π΅Π»ΡΡΡ ΡΠ»ΠΈΡΠΊΠΎΠΌ ΠΌΠ°Π»ΠΎ Π²ΡΠ΅ΠΌΠ΅Π½ΠΈ ΠΏΡΠΈΠ³ΠΎΡΠΎΠ²Π»Π΅Π½ΠΈΡ ΠΊΡΠ»ΠΈΠ½Π°ΡΠ½ΡΡ ΠΈΠ·ΡΡΠΊΠΎΠ², ΡΡΠΎΠ±Ρ ΠΎΠ·Π°Π±ΠΎΡΠΈΡΡΡΡ ΠΏΡΠΎΠ±Π»Π΅ΠΌΠΎΠΉ Π·Π°Π³ΡΡΠ·Π½Π΅Π½ΠΈΠΉ ΠΈΠ»ΠΈ Π·Π°ΠΏΠ°Ρ ΠΎΠ². ΠΠ»Ρ ΡΡΠΎΠ³ΠΎ Π΄ΠΎΡΡΠ°ΡΠΎΡΠ½ΠΎ ΡΡΡΠ°Π½ΠΎΠ²ΠΈΡΡ Ρ ΠΎΡΠΎΡΡΡ Π²Π΅Π½ΡΠΈΠ»ΡΡΠΈΡ.
Π§ΠΈΡΠ°ΠΉΡΠ΅ ΡΠ°ΠΊΠΆΠ΅:Β ΠΠ΄Π΅ ΠΆΠΈΠ²Π΅Ρ Π°ΠΊΡΠ΅Ρ Π’ΠΎΠΌ Π₯ΠΈΠ΄Π΄Π»ΡΡΠΎΠ½ Π² ΠΠΎΠ½Π΄ΠΎΠ½Π΅

ΠΡΠΈ ΠΏΡΠΎΠΆΠΈΠ²Π°Π½ΠΈΠΈ ΡΠ΅ΠΌΡΠΈ Ρ ΡΠ΅Π±Π΅Π½ΠΊΠΎΠΌ ΡΡΠ° ΠΏΡΠΎΠ±Π»Π΅ΠΌΠ° ΡΡΠ°Π½ΠΎΠ²ΠΈΡΡΡ Π±ΠΎΠ»Π΅Π΅ Π½Π°ΡΡΡΠ½ΠΎΠΉ.Β Π‘ΠΏΠ°Π»ΡΠ½Ρ ΠΎΡ ΠΊΡΡ Π½ΠΈΒ ΠΏΡΠΎΡΠ΅ Π²ΡΠ΅Π³ΠΎ ΡΠ°Π·Π³ΡΠ°Π½ΠΈΡΠΈΡΡ, Π²ΡΠ½Π΅ΡΡ ΠΊΡΡ ΠΎΠ½Π½ΡΠ΅ ΠΏΡΠΈΠ½Π°Π΄Π»Π΅ΠΆΠ½ΠΎΡΡΠΈ Π½Π° Π±Π°Π»ΠΊΠΎΠ½. ΠΠ΄Π΅ΡΡ ΠΌΠΎΠΆΠ½ΠΎ ΡΡΡΠ°Π½ΠΎΠ²ΠΈΡΡ Π²Π°ΡΠΎΡΠ½ΡΡ ΠΏΠ°Π½Π΅Π»Ρ, ΠΌΠΈΠΊΡΠΎΠ²ΠΎΠ»Π½ΠΎΠ²ΠΊΡ, Ρ ΠΎΠ»ΠΎΠ΄ΠΈΠ»ΡΠ½ΠΈΠΊ, ΡΠ»Π΅ΠΊΡΡΠΎΡΠ°ΠΉΠ½ΠΈΠΊ.

ΠΠ΅ΠΊΠΎΡΠ°ΡΠΈΠ²Π½Π°Ρ ΠΏΠ΅ΡΠ΅Π³ΠΎΡΠΎΠ΄ΠΊΠ° ΠΌΠ΅ΠΆΠ΄Ρ Π»ΠΎΠ΄ΠΆΠΈΠ΅ΠΉ ΠΈ ΠΊΠΎΠΌΠ½Π°ΡΠΎΠΉ, Π±ΡΠ΄Π΅Ρ ΠΈΡΠΏΠΎΠ»ΡΠ·ΠΎΠ²Π°ΡΡΡΡ ΠΊΠ°ΠΊ ΡΡΠ΅Π»Π»Π°ΠΆ Π΄Π»Ρ ΠΏΠΎΡΡΠ΄Ρ. Π Π΅ΡΠ»ΠΈ Π²ΠΌΠ΅ΡΡΠΎ ΡΡΠΎΠ³ΠΎ ΡΡΡΠ°Π½ΠΎΠ²ΠΈΡΡ Π±Π°ΡΠ½ΡΡ ΡΡΠΎΠΉΠΊΡ, Π·Π° Π½Π΅ΠΉ ΠΌΠΎΠΆΠ½ΠΎ ΠΎΠ±Π΅Π΄Π°ΡΡ ΠΈΠ»ΠΈ ΡΠΆΠΈΠ½Π°ΡΡ. ΠΡΠ»ΠΈ Ρ ΠΎΠ·ΡΠΉΠΊΠ° ΡΠΎΡΡΠ΅Ρ ΡΠ°ΠΊΠΎΠΉ Π²Π°ΡΠΈΠ°Π½Ρ Π½Π΅ΡΠ΄ΠΎΠ±Π½ΡΠΌ, ΠΏΡΠΈΠΌΠ΅Π½ΡΡΡΡΡ ΡΡΠ°Π½Π΄Π°ΡΡΠ½ΡΠ΅ ΡΠ΅ΡΠ΅Π½ΠΈΡ:



ΠΠ΅Π±Π΅Π»Ρ (ΡΠΏΠΈΠ½ΠΊΠ° Π΄ΠΈΠ²Π°Π½Π°, Π² Π½ΠΎΡΠ½ΠΎΠ΅ Π²ΡΠ΅ΠΌΡ ΠΏΡΠ΅Π΄Π½Π°Π·Π½Π°ΡΠ΅Π½Π½ΠΎΠ³ΠΎ Π΄Π»Ρ ΡΠ½Π°), ΡΡΠΌΠ±ΠΎΡΠΊΠΈ, ΡΡΠ΅Π»Π»Π°ΠΆ. Π’Π΅ΠΊΡΡΠΈΠ»Ρ β ΡΡΠΎΡΡ ΠΈΠ»ΠΈ Π·Π°Π½Π°Π²Π΅ΡΠΊΠΈ.

ΠΠ΅ΡΠ΅Π³ΠΎΡΠΎΠ΄ΠΊΠΈ ΠΈΠ· ΡΡΠ΅ΠΊΠ»Π°, ΠΏΡΠΎΠ·ΡΠ°ΡΠ½ΠΎΠ³ΠΎ ΠΏΠ»Π°ΡΡΠΈΠΊΠ°, Π΄Π΅ΡΠ΅Π²ΡΠ½Π½ΡΡ ΡΠ΅Π΅ΠΊ.

ΠΠΎΠ΄ΠΈΡΠΌ ΠΈΠ»ΠΈ Π²ΡΠΎΡΠΎΠΉ ΡΡΠ°ΠΆ Π΄Π»Ρ ΡΠ½Π°.

ΠΡΠ½ΠΎΠ²Π½ΠΎΠΉ ΠΏΡΠΎΠ±Π»Π΅ΠΌΠΎΠΉ ΡΠΎΠ²ΠΌΠ΅ΡΠ΅Π½Π½ΠΎΠ³ΠΎ ΠΏΡΠΎΡΡΡΠ°Π½ΡΡΠ²Π° Π½Π°Π·ΡΠ²Π°ΡΡ Π·Π°Π³ΡΡΠ·Π½Π΅Π½ΠΈΡ ΠΈ Π·Π°ΠΏΠ°Ρ ΠΈ. ΠΠ΅ΡΠ΅Π³ΠΎΡΠΎΠ΄ΠΊΠ°, ΡΠΎΡ ΡΠ°Π½ΡΡΡΠ°Ρ ΡΠ²Π΅Ρ (ΠΊΠ°ΠΊ Π½Π°Β ΡΠΎΡΠΎ),Β Π½ΠΎ ΠΏΡΠΈΠ½ΠΈΠΌΠ°ΡΡΠ°Ρ Π½Π° ΡΠ΅Π±Ρ ΠΊΡΡ ΠΎΠ½Π½ΡΠ΅ Π½Π΅ΠΏΡΠΈΡΡΠ½ΠΎΡΡΠΈ ΠΈ Ρ ΠΎΡΠΎΡΠ°Ρ Π²ΡΡΡΠΆΠΊΠ° Π±ΡΠ΄ΡΡ ΠΏΡΠ΅ΠΊΡΠ°ΡΠ½ΡΠΌ ΡΠ΅ΡΠ΅Π½ΠΈΠ΅ΠΌ ΠΏΡΠΎΠ±Π»Π΅ΠΌΡ. Π¦Π²Π΅ΡΠΎΠ²ΠΎΠ΅ Π·ΠΎΠ½ΠΈΡΠΎΠ²Π°Π½ΠΈΠ΅, Ρ ΠΎΡΠΊΡΡΡΡΠΌ ΠΏΡΠΎΡΡΡΠ°Π½ΡΡΠ²ΠΎΠΌ Π² ΡΠ»ΡΡΠ°Π΅ Π±Π»ΠΈΠ·ΠΊΠΎΠ³ΠΎ ΡΠΎΡΠ΅Π΄ΡΡΠ²Π° ΠΏΠΎΠΌΠ΅ΡΠ΅Π½ΠΈΡ Π΄Π»Ρ Π³ΠΎΡΠΎΠ²ΠΊΠΈ ΠΈ ΡΠ½Π° Π½Π΅ΡΡΡΠ΅ΠΊΡΠΈΠ²Π½ΠΎ.

Π§ΡΠΎ ΡΠ»Π΅Π΄ΡΠ΅Ρ ΡΡΠΈΡΡΠ²Π°ΡΡ ΠΏΡΠΈ ΠΏΡΠΎΠ΅ΠΊΡΠΈΡΠΎΠ²Π°Π½ΠΈΠΈ: ΡΠΎΠ²Π΅ΡΡ ΡΠΏΠ΅ΡΠΈΠ°Π»ΠΈΡΡΠΎΠ²
Π‘Π½Π΅ΡΡΠΈ ΠΏΠ΅ΡΠ΅Π³ΠΎΡΠΎΠ΄ΠΊΡ ΠΌΠ΅ΠΆΠ΄Ρ ΠΊΡΡ Π½Π΅ΠΉ ΠΈ ΠΊΠΎΠΌΠ½Π°ΡΠΎΠΉ ΠΏΡΠΎΡΡΠΎ, Π΅ΡΠ»ΠΈ Π΅ΡΡΡ ΡΠ°Π·ΡΠ΅ΡΠ΅Π½ΠΈΠ΅ Π½Π° ΠΏΡΠΎΠ²Π΅Π΄Π΅Π½ΠΈΠ΅ ΠΏΠΎΠ΄ΠΎΠ±Π½ΡΡ ΡΠ°Π±ΠΎΡ.

ΠΠΎΠΆΠ½ΠΎ ΠΏΡΠΈΡΠΎΠ΅Π΄ΠΈΠ½ΠΈΡΡ ΠΈΠΌΠ΅ΡΡΠΈΠ΅ΡΡ ΠΏΠΎΠ΄ΡΠΎΠ±Π½ΡΠ΅ ΠΏΠΎΠΌΠ΅ΡΠ΅Π½ΠΈΡ β ΠΊΠ»Π°Π΄ΠΎΠ²ΠΊΠΈ, Π°Π½ΡΡΠ΅ΡΠΎΠ»ΠΈ, Π½ΠΈΡΠΈ,Β ΠΎΡΠ³Π°Π½ΠΈΡΠ½ΠΎ Π²ΠΏΠΈΡΠ°ΡΡ Π±Π°Π»ΠΊΠΎΠ½ ΠΈΠ»ΠΈ Π»ΠΎΠ΄ΠΆΠΈΡ Π² ΡΠ΅Π»ΡΠ½ΡΡ ΠΈ ΠΊΡΠ΅Π°ΡΠΈΠ²Π½ΡΡ Π²ΠΈΠ·ΡΠ°Π»ΠΈΠ·Π°ΡΠΈΡ.
ΠΠ°ΠΆΠ½ΠΎ!
ΠΠΈΠ·Π°ΠΉΠ½Β Π΄ΠΎΠ»ΠΆΠ΅Π½ Π½Π΅ΠΏΡΠ΅ΠΌΠ΅Π½Π½ΠΎ ΡΡΠΈΡΡΠ²Π°ΡΡ ΠΎΡΠΎΠ±Π΅Π½Π½ΠΎΡΡΠΈ Π½Π΅ ΡΠΎΠ³ΠΎ ΠΏΠΎΠΌΠ΅ΡΠ΅Π½ΠΈΡ, ΠΊΠΎΡΠΎΡΠΎΠ΅ Π½Π°Ρ ΠΎΠ΄ΠΈΡΡΡ ΠΏΠ΅ΡΠ΅Π΄ Π³Π»Π°Π·Π°ΠΌΠΈ ΠΏΡΠΈ ΠΏΠΎΠΊΡΠΏΠΊΠ΅.
Π ΡΠΎΠΉ ΠΏΠΎΠ»Π΅Π·Π½ΠΎΠΉ ΠΏΠ»ΠΎΡΠ°Π΄ΠΈ, ΠΊΠΎΡΠΎΡΠ°Ρ ΠΎΠ±ΡΠ°Π·ΡΠ΅ΡΡΡ ΡΠ΅Π»ΡΠ½ΡΠΌ ΠΏΡΠΎΡΡΠΎΡΠ½ΡΠΌ ΠΌΠ°ΡΡΠΈΠ²ΠΎΠΌ ΠΏΠΎΡΠ»Π΅ ΡΠ½ΠΎΡΠ° Π²ΡΠ΅Ρ Π²ΠΎΠ·ΠΌΠΎΠΆΠ½ΡΡ ΠΏΠ΅ΡΠ΅Π³ΠΎΡΠΎΠ΄ΠΎΠΊ.

ΠΠ²Π°ΡΡΠΈΡΠ°, ΠΏΠ»ΠΎΡΠ°Π΄Ρ ΠΊΠΎΡΠΎΡΠΎΠΉ ΠΎΠ±ΠΎΠ·Π½Π°ΡΠ΅Π½Π° Π² ΠΎΡΠ΄Π΅ΡΠ΅, ΠΊΠ°ΠΊΒ 30 ΠΊΠ². ΠΌ,Β Π² ΡΠ΅Π°Π»ΡΠ½ΠΎΡΡΠΈ ΠΌΠΎΠΆΠ΅Ρ ΠΈΠΌΠ΅ΡΡ ΠΎΡΠΎΠ±Π΅Π½Π½ΠΎΡΡΠΈ, ΠΊΠΎΡΠΎΡΡΠ΅ Π·Π°Π²ΠΈΡΡΡ ΠΎΡ ΡΠΈΠΏΠΎΠ²ΠΎΠ³ΠΎ ΠΏΡΠΎΠ΅ΠΊΡΠ°:
- ΠΎΠΊΠΎΠ½ΡΠ°ΡΠ΅Π»ΡΠ½Π°Ρ ΡΠΎΡΠΌΠ°, ΠΏΠΎΡΠ»Π΅ ΡΠ½ΠΎΡΠ° ΠΏΠ΅ΡΠ΅Π³ΠΎΡΠΎΠ΄ΠΎΠΊ, ΠΌΠΎΠΆΠ΅Ρ Π±ΡΡΡ ΠΊΠ²Π°Π΄ΡΠ°ΡΠ½ΠΎΠΉ, ΠΏΡΡΠΌΠΎΡΠ³ΠΎΠ»ΡΠ½ΠΎΠΉ ΠΈΠ»ΠΈ Π½Π΅ΡΡΠ°Π½Π΄Π°ΡΡΠ½ΠΎ-ΠΌΠ½ΠΎΠ³ΠΎΡΠ³ΠΎΠ»ΡΠ½ΠΎΠΉ;
- Π°Π½ΡΡΠ΅ΡΠΎΠ»ΠΈ, ΠΊΠ»Π°Π΄ΠΎΠ²ΡΠ΅ ΠΈ Π½ΠΈΡΠΈ Π΄ΠΎΠ»ΠΆΠ½Ρ ΠΈΡΠΏΠΎΠ»ΡΠ·ΠΎΠ²Π°ΡΡΡΡ ΠΏΡΠΎΠ΄ΡΠΊΡΠΈΠ²Π½ΠΎ, ΠΊ ΡΠΎΠΌΡ ΠΆΠ΅ Π² ΠΊΠ²Π°ΡΡΠΈΡΠ΅ ΠΌΠΎΠ³ΡΡ Π±ΡΡΡ ΠΊΠΎΠΌΠΌΡΠ½ΠΈΠΊΠ°ΡΠΈΠΈ, ΠΎ ΠΊΠΎΡΠΎΡΡΡ ΡΠΎΠΆΠ΅ ΡΠ»Π΅Π΄ΡΠ΅Ρ ΠΏΠΎΠ·Π°Π±ΠΎΡΠΈΡΡΡΡ;
- ΡΠ°Π·Π½ΡΠΌ ΠΌΠΎΠΆΠ΅Ρ Π±ΡΡΡ ΠΈ ΠΊΠΎΠ»ΠΈΡΠ΅ΡΡΠ²ΠΎ Π΄Π²Π΅ΡΠ½ΡΡ ΠΈ ΠΎΠΊΠΎΠ½Π½ΡΡ ΠΏΡΠΎΠ΅ΠΌΠΎΠ²;

- ΠΏΡΠΎΠ΅ΠΊΡ ΠΌΠΎΠΆΠ΅Ρ ΠΈΠ·ΠΌΠ΅Π½ΠΈΡΡΡΡ, Π΅ΡΠ»ΠΈ Π² ΠΊΠ²Π°ΡΡΠΈΡΠ΅ ΠΎΡΠΊΡΡΡΡΠΉ, Π·Π°ΠΊΡΡΡΡΠΉ ΠΏΡΠ΅ΠΆΠ½ΠΈΠΌΠΈ Ρ ΠΎΠ·ΡΠ΅Π²Π°ΠΌΠΈ Π±Π°Π»ΠΊΠΎΠ½, Π½Π΅ ΠΏΡΠ΅Π΄ΡΡΠΌΠΎΡΡΠ΅Π½Π½ΡΠΉ Π² ΠΏΡΠΎΠ΅ΠΊΡΠ΅ ΡΠ΅Π»ΡΠ½ΡΠΉ, ΠΎΠ±ΡΠ΅Π΄ΠΈΠ½ΡΡΡΠΈΠΉ ΠΊΡΡ Π½Ρ ΠΈ ΠΊΠΎΠΌΠ½Π°ΡΡ, Π»ΠΎΠ΄ΠΆΠΈΡ;
- ΡΠ°Π½ΡΠ·Π΅Π», ΡΠΎΠ²ΠΌΠ΅ΡΠ΅Π½Π½ΡΠΉ Π² Ρ ΡΡΡΠ΅Π²ΠΊΠ΅ ΠΈ ΠΎΡΠ΄Π΅Π»Π΅Π½Π½ΡΠΉ ΠΊΠ°ΠΏΠΈΡΠ°Π»ΡΠ½ΠΎΠΉ ΡΡΠ΅Π½ΠΎΠΉ, Π² ΡΡΠ°ΡΡΡ Π΄ΠΎΠΌΠ°Ρ Ρ Π²ΡΡΠΎΠΊΠΈΠΌΠΈ ΠΏΠΎΡΠΎΠ»ΠΊΠ°ΠΌΠΈ ΠΌΠΎΠΆΠ΅Ρ ΠΎΠΊΠ°Π·Π°ΡΡΡΡ Π² Π½Π΅ΠΎΠΆΠΈΠ΄Π°Π½Π½ΠΎΠΌ ΠΌΠ΅ΡΡΠ΅, Π΅ΡΠ»ΠΈ ΠΎΠ΄Π½ΠΎΠΊΠΎΠΌΠ½Π°ΡΠ½Π°Ρ ΠΊΠ²Π°ΡΡΠΈΡΠ° Π²ΡΠ΄Π΅Π»ΡΠ»Π°ΡΡ ΠΈΠ· Π±ΠΎΠ»ΡΡΠΎΠΉ ΠΊΠΎΠΌΠΌΡΠ½Π°Π»ΠΊΠΈ.

Π‘ΡΠ°Π½Π΄Π°ΡΡΠ½ΡΠ΅ ΠΈΠ΄Π΅ΠΈ ΠΎΡΠΈΠ΅Π½ΡΠΈΡΠΎΠ²Π°Π½Ρ Π½Π° ΡΠ°ΠΌΡΠ΅ ΡΠ°ΡΠΏΡΠΎΡΡΡΠ°Π½Π΅Π½Π½ΡΠ΅ ΡΠΎΡΠΌΡ β ΠΊΠ²Π°Π΄ΡΠ°ΡΒ Ρ ΠΎΠ΄Π½ΠΈΠΌ ΠΎΠΊΠ½ΠΎΠΌ ΠΈ Π±Π°Π»ΠΊΠΎΠ½ΠΎΠΌΒ ΠΈΠ»ΠΈΒ Ρ ΠΎΠ΄Π½ΠΈΠΌ ΠΎΠΊΠ½ΠΎΠΌ.Β ΠΡΠ»ΠΈ Π² ΠΎΠΊΠΎΠ½ΡΠ°ΡΠ΅Π»ΡΠ½ΠΎΠΌ Π²Π°ΡΠΈΠ°Π½ΡΠ΅Β ΠΊΠ²Π°ΡΡΠΈΡΡ-ΡΡΡΠ΄ΠΈΠΈΒ Π΅ΡΡΡ ΠΎΡΠΎΠ±Π΅Π½Π½ΠΎΡΡΠΈ, ΡΡΠΎΠΈΡ ΠΏΠΎΠ΄ΡΠΌΠ°ΡΡ, ΠΊΠ°ΠΊ ΠΌΠΎΠΆΠ½ΠΎ Π½Π°ΠΈΠ±ΠΎΠ»Π΅Π΅ ΠΏΡΠΎΠ΄ΡΠΊΡΠΈΠ²Π½ΠΎ ΠΈΡ ΠΈΡΠΏΠΎΠ»ΡΠ·ΠΎΠ²Π°ΡΡ.

ΠΠ΅ΠΌΠ°Π»ΠΎΠ²Π°ΠΆΠ½ΠΎ ΠΈ ΠΊΠΎΠ»ΠΈΡΠ΅ΡΡΠ²ΠΎ ΠΆΠΈΠ»ΡΡΠΎΠ², ΠΊΠΎΡΠΎΡΡΠ΅ Π±ΡΠ΄ΡΡ ΠΏΡΠΎΠΆΠΈΠ²Π°ΡΡ Π² ΠΏΠΎΠΌΠ΅ΡΠ΅Π½ΠΈΠΈ.Β Π€ΠΎΡΠΎΒ Π½Π΅ΡΠ΅Π΄ΠΊΠΎ Π΄Π΅ΠΌΠΎΠ½ΡΡΡΠΈΡΡΡΡ Π½Π΅ΠΎΠ±ΡΡΠ½ΡΠ΅ ΠΈΠ΄Π΅ΠΈ Π΄Π»Ρ ΠΎΠ΄Π½ΠΎΠ³ΠΎ ΡΠ΅Π»ΠΎΠ²Π΅ΠΊΠ°, Π½ΠΎ Π½Π°Β 30 ΠΊΠ². ΠΌΒ ΠΌΠΎΠΆΠ΅Ρ ΠΏΡΠΎΠΆΠΈΠ²Π°ΡΡ ΠΈ ΠΌΠΎΠ»ΠΎΠ΄Π°Ρ ΡΠ΅ΠΌΡΡ Ρ ΡΠ΅Π±Π΅Π½ΠΊΠΎΠΌ.

ΠΡΠ΅ΠΆΠ΄Π΅ ΡΠ΅ΠΌ ΠΏΠΎΠ΄Π±ΠΈΡΠ°ΡΡ Π²Π°ΡΠΈΠ°Π½ΡΡ ΠΎΡΠΎΡΠΌΠ»Π΅Π½ΠΈΡ, Π½ΡΠΆΠ½ΠΎ ΠΈΠΌΠ΅ΡΡ ΡΠ΅ΡΠΊΠΎΠ΅ ΠΏΡΠ΅Π΄ΡΡΠ°Π²Π»Π΅Π½ΠΈΠ΅ ΠΎ ΠΆΠ΅Π»Π°Π΅ΠΌΠΎΠΌ ΡΠ΅Π·ΡΠ»ΡΡΠ°ΡΠ΅. ΠΠ΅Π²Π°ΠΆΠ½ΠΎ, ΡΠ²ΠΎΠΈΠΌΠΈ ΡΡΠΊΠ°ΠΌΠΈ ΠΈΠ»ΠΈ Ρ ΠΏΠΎΠΌΠΎΡΡΡ ΠΏΡΠΎΡΠ΅ΡΡΠΈΠΎΠ½Π°Π»ΡΠ½ΡΡ ΠΌΠ°ΡΡΠ΅ΡΠΎΠ² Π±ΡΠ΄Π΅Ρ ΠΎΡΡΡΠ΅ΡΡΠ²Π»ΡΡΡΡΡ ΠΏΠ΅ΡΠ΅ΠΏΠ»Π°Π½ΠΈΡΠΎΠ²ΠΊΠ° ΡΡΠ°Π½Π΄Π°ΡΡΠ½ΠΎΠΉ Ρ ΡΡΡΠ΅Π²ΠΊΠΈ, Π½Π΅ΠΎΠ±Ρ ΠΎΠ΄ΠΈΠΌΠΎ ΡΠΎΡΡΠ°Π²Π»Π΅Π½ΠΈΠ΅ ΡΡ Π΅ΠΌΡ-ΠΏΡΠΎΠ΅ΠΊΡΠ°.
ΠΠΈΠ·Π°ΠΉΠ½ ΠΊΠ²Π°ΡΡΠΈΡΡ-ΡΡΡΠ΄ΠΈΠΈ 30 ΠΊΠ². ΠΌΒ Π½Π°ΡΠΈΠ½Π°ΡΡ Ρ ΡΠ΅ΡΠΊΠΎΠΉ ΡΠ²Π΅ΡΠ΅Π½Π½ΠΎΡΡΠΈ, ΠΊΠ°ΠΊΠΈΠΌ ΠΎΠ±ΡΠ°Π·ΠΎΠΌ Π±ΡΠ΄Π΅Ρ Π΄ΠΎΡΡΠΈΠ³Π½ΡΡΠΎ Π½Π΅ΠΎΠ±Ρ ΠΎΠ΄ΠΈΠΌΠΎΠ΅ ΠΏΡΠΎΡΡΡΠ°Π½ΡΡΠ²ΠΎ.
Π ΠΏΠΎΡΠ»Π΅Π΄Π½Π΅Π΅ Π²ΡΠ΅ΠΌΡ Π±ΠΎΠ»ΡΡΠΎΠΉ ΠΏΠΎΠΏΡΠ»ΡΡΠ½ΠΎΡΡΡΡ ΠΏΠΎΠ»ΡΠ·ΡΡΡΡΡ ΠΊΠ²Π°ΡΡΠΈΡΡ-ΡΡΡΠ΄ΠΈΠΈ. ΠΠΎΠ΄ΠΎΠ±Π½ΡΠ΅ ΠΆΠΈΠ»ΡΠ΅ ΠΏΠ»ΠΎΡΠ°Π΄ΠΈ ΡΠ°ΡΠ΅ Π²ΡΠ΅Π³ΠΎ Π²ΡΠ±ΠΈΡΠ°ΡΡ ΠΌΠΎΠ»ΠΎΠ΄ΡΠ΅ Π»ΡΠ΄ΠΈ, ΠΊΠΎΡΠΎΡΡΠ΅ Π»ΡΠ±ΡΡ ΠΊΡΠ΅Π°ΡΠΈΠ²Π½ΡΠ΅ ΠΈ ΠΌΠΎΠ΄Π½ΡΠ΅ ΠΈΠ½ΡΠ΅ΡΡΠ΅ΡΡ.
ΠΡΠΎΡΠΌΠ»ΡΡ ΠΏΠΎΠ΄ΠΎΠ±Π½ΡΠ΅ ΠΊΠ²Π°ΡΡΠΈΡΡ, Π½Π΅ ΡΡΠ΅Π±ΡΠ΅ΡΡΡ ΠΏΡΠΈΠ΄Π΅ΡΠΆΠΈΠ²Π°ΡΡΡΡ ΡΡΡΠΎΠ³ΠΈΡ ΠΏΡΠ°Π²ΠΈΠ» ΠΈ ΠΏΠ»Π°Π½ΠΎΠ². ΠΡ ΠΌΠΎΠΆΠ΅ΡΠ΅ ΠΎΡΠΏΡΡΡΠΈΡΡ ΡΠ°Π½ΡΠ°Π·ΠΈΡ Π½Π° Π²ΠΎΠ»Ρ ΠΈ ΡΡΠΎΡΠΌΠΈΡΠΎΠ²Π°ΡΡ Π°Π±ΡΠΎΠ»ΡΡΠ½ΠΎ Π»ΡΠ±ΠΎΠΉ Π΄ΠΈΠ·Π°ΠΉΠ½.
Π§ΡΠΎ ΡΠ°ΠΊΠΎΠ΅ ΠΊΠ²Π°ΡΡΠΈΡΠ°-ΡΡΡΠ΄ΠΈΡ?
ΠΠ²Π°ΡΡΠΈΡΠ°-ΡΡΡΠ΄ΠΈΡ β ΡΡΠΎ ΡΠ°ΠΊΠ°Ρ ΠΆΠΈΠ»Π°Ρ ΠΏΠ»ΠΎΡΠ°Π΄Ρ, Π² ΠΊΠΎΡΠΎΡΠΎΠΉ Π½Π΅Ρ ΠΏΠ΅ΡΠ΅Π³ΠΎΡΠΎΠ΄ΠΎΠΊ. ΠΡ ΡΡΠ½ΠΊΡΠΈΡ ΠΌΠΎΠ³ΡΡ Π²ΡΠΏΠΎΠ»Π½ΡΡΡ Π½Π΅ΠΊΠΎΡΠΎΡΡΠ΅ ΠΏΡΠ΅Π΄ΠΌΠ΅ΡΡ ΠΌΠ΅Π±Π΅Π»ΠΈ, Π΅ΡΠ»ΠΈ ΡΡΠΎ Π½Π΅ΠΎΠ±Ρ ΠΎΠ΄ΠΈΠΌΠΎ. ΠΠ°ΠΏΡΠΈΠΌΠ΅Ρ, ΠΈΠΌΠΏΡΠΎΠ²ΠΈΠ·ΠΈΡΠΎΠ²Π°Π½Π½ΠΎΠΉ ΠΏΠ΅ΡΠ΅Π³ΠΎΡΠΎΠ΄ΠΊΠΎΠΉ ΠΌΠΎΠΆΠ΅Ρ ΡΡΠ°ΡΡ ΡΠΊΠ°Ρ-ΠΊΡΠΏΠ΅ Π²Π½ΡΡΠΈΡΠ΅Π»ΡΠ½ΡΡ ΡΠ°Π·ΠΌΠ΅ΡΠΎΠ².
ΠΠΈΠ»ΡΠ΅ ΠΏΠΎΠ΄ΠΎΠ±Π½ΠΎΠΉ ΠΏΠ»Π°Π½ΠΈΡΠΎΠ²ΠΊΠΈ ΠΏΠΎΡΠ²ΠΈΠ»ΠΎΡΡ Π½Π° ΡΡΠ½ΠΊΠ΅ ΡΠΎΠ²ΡΠ΅ΠΌ Π½Π΅Π΄Π°Π²Π½ΠΎ, Π½ΠΎ ΡΠΆΠ΅ ΡΡΠΏΠ΅Π»ΠΎ Π·Π°Π²ΠΎΠ΅Π²Π°ΡΡ ΠΏΠΎΠΏΡΠ»ΡΡΠ½ΠΎΡΡΡ ΡΡΠ΅Π΄ΠΈ ΠΏΠΎΡΡΠ΅Π±ΠΈΡΠ΅Π»Π΅ΠΉ. ΠΠ°ΡΠ°ΡΡΡΡ ΠΊ ΠΏΠΎΠ΄ΠΎΠ±Π½ΡΠΌ Π²Π°ΡΠΈΠ°Π½ΡΠ°ΠΌ ΠΎΠ±ΡΠ°ΡΠ°ΡΡΡΡ Π»ΡΠ΄ΠΈ ΠΌΠΎΠ»ΠΎΠ΄ΠΎΠ³ΠΎ Π²ΠΎΠ·ΡΠ°ΡΡΠ°. Π’Π°ΠΊΠΈΠΌ ΠΏΠΎΠΊΡΠΏΠ°ΡΠ΅Π»ΡΠΌ Π±ΠΎΠ»ΡΡΠΎΠ΅ ΠΊΠΎΠ»ΠΈΡΠ΅ΡΡΠ²ΠΎ ΠΊΠΎΠΌΠ½Π°Ρ Π½Π΅ Π½ΡΠΆΠ½ΠΎ, Π·Π°ΡΠΎ ΠΎΡΠ΅Π½Ρ ΠΊΡΡΠ°ΡΠΈ ΠΏΡΠΈΡ ΠΎΠ΄ΡΡΡΡ ΠΏΠ»Π°Π½ΠΈΡΠΎΠ²ΠΊΠΈ, Π² ΠΊΠΎΡΠΎΡΡΡ Π²ΡΠ΅ ΡΠ³ΠΎΠ»ΠΊΠΈ ΠΊΠ²Π°ΡΡΠΈΡΡ Π½Π°Ρ ΠΎΠ΄ΡΡΡΡ Π½Π° Π²ΠΈΠ΄Ρ.
Π‘ΡΠΎΠΈΡ ΠΎΡΠΌΠ΅ΡΠΈΡΡ ΡΠΎΡ ΡΠ°ΠΊΡ, ΡΡΠΎ ΡΡΡΠ΄ΠΈΡ Π΄Π²ΡΡ ΠΊΠΎΠΌΠ½Π°ΡΠ½ΠΎΠΉ Π±ΡΡΡ Π½Π΅ ΠΌΠΎΠΆΠ΅Ρ. ΠΠΎΠ΄ΠΎΠ±Π½Π°Ρ ΠΊΠ²Π°ΡΡΠΈΡΠ° ΡΠ²Π»ΡΠ΅ΡΡΡ ΠΈΡΠΊΠ»ΡΡΠΈΡΠ΅Π»ΡΠ½ΠΎ ΠΎΠ΄Π½ΠΎΠΊΠΎΠΌΠ½Π°ΡΠ½ΠΎΠΉ ΠΈ ΠΌΠΎΠΆΠ΅Ρ ΠΈΠΌΠ΅ΡΡ ΠΊΠ°ΠΊ Π±ΠΎΠ»ΡΡΡΡ, ΡΠ°ΠΊ ΠΈ ΠΌΠ°Π»Π΅Π½ΡΠΊΡΡ ΠΏΠ»ΠΎΡΠ°Π΄Ρ.
ΠΡΠΎΠ±Π΅Π½Π½ΠΎΡΡΠΈ ΠΏΠ»Π°Π½ΠΈΡΠΎΠ²ΠΊΠΈ
ΠΡΠΈ ΠΎΠ±ΡΡΡΡΠΎΠΉΡΡΠ²Π΅ ΠΏΠΎΠ΄ΠΎΠ±Π½ΡΡ ΠΊΠ²Π°ΡΡΠΈΡ ΡΠ΅ΠΊΠΎΠΌΠ΅Π½Π΄ΡΠ΅ΡΡΡ ΠΏΡΠΈΠ΄Π΅ΡΠΆΠΈΠ²Π°ΡΡΡΡ ΠΎΠ΄Π½ΠΎΠ³ΠΎ ΠΏΡΠΎΡΡΠΎΠ³ΠΎ ΠΏΡΠ°Π²ΠΈΠ»Π°: ΡΠ²ΠΎΠ±ΠΎΠ΄Π½ΠΎΠ³ΠΎ ΠΌΠ΅ΡΡΠ° ΡΠ»Π΅Π΄ΡΠ΅Ρ ΠΎΡΡΠ°Π²Π»ΡΡΡ, ΠΊΠ°ΠΊ ΠΌΠΎΠΆΠ½ΠΎ Π±ΠΎΠ»ΡΡΠ΅. ΠΠΎ ΡΡΠΎΠΉ ΠΏΡΠΈΡΠΈΠ½Π΅ ΠΊ ΠΏΠΎΠ΄Π±ΠΎΡΡ ΠΎΠ±ΡΡΠ°Π½ΠΎΠ²ΠΊΠΈ ΠΆΠΈΠ»ΠΈΡΠ° Π½ΡΠΆΠ½ΠΎ ΠΎΡΠ½ΠΎΡΠΈΡΡΡΡ ΠΎΡΠ΅Π½Ρ ΡΠ΅ΡΡΠ΅Π·Π½ΠΎ ΠΈ ΠΏΡΠΎΠ΄ΡΠΌΠ°Π½Π½ΠΎ. Π’ΡΡ Π½Π΅ ΠΎΠ±ΠΎΠΉΡΠΈΡΡ Π±Π΅Π· ΡΠ΅ΡΠΊΠΎΠ³ΠΎ Π·ΠΎΠ½ΠΈΡΠΎΠ²Π°Π½ΠΈΡ: ΡΠ°ΠΊΠΎΠ΅ ΡΠ°Π·Π³ΡΠ°Π½ΠΈΡΠ΅Π½ΠΈΠ΅ ΡΠ²ΠΎΠ±ΠΎΠ΄Π½ΠΎΠ³ΠΎ ΠΏΡΠΎΡΡΡΠ°Π½ΡΡΠ²Π° ΠΏΠΎΠ·Π²ΠΎΠ»ΠΈΡ Π³ΡΠ°ΠΌΠΎΡΠ½ΠΎ ΠΈ ΠΏΡΠΎΠ΄ΡΠΊΡΠΈΠ²Π½ΠΎ ΠΈΡΠΏΠΎΠ»ΡΠ·ΠΎΠ²Π°ΡΡ ΠΈΠΌΠ΅ΡΡΠΈΠ΅ΡΡ ΠΊΠ²Π°Π΄ΡΠ°ΡΠ½ΡΠ΅ ΠΌΠ΅ΡΡΡ.
ΠΡΠ΅ ΠΏΡΠ΅Π΄ΠΌΠ΅ΡΡ ΠΌΠ΅Π±Π΅Π»ΠΈ Π΄ΠΎΠ»ΠΆΠ½Ρ Π±ΡΡΡ ΠΌΠ°ΠΊΡΠΈΠΌΠ°Π»ΡΠ½ΠΎ ΡΡΠ½ΠΊΡΠΈΠΎΠ½Π°Π»ΡΠ½ΡΠΌΠΈ ΠΈ ΡΠ°ΡΠΏΠΎΠ»ΠΎΠΆΠ΅Π½Π½ΡΠΌΠΈ Π² ΡΠΎΠΎΡΠ²Π΅ΡΡΡΠ²ΡΡΡΠ΅ΠΉ Π·ΠΎΠ½Π΅.
Π Π°ΡΡΡΠ°Π²Π»ΡΡ ΡΠ°Π·Π»ΠΈΡΠ½ΡΠ΅ ΠΎΠ±ΡΠ΅ΠΊΡΡ, ΡΠ΅ΠΊΠΎΠΌΠ΅Π½Π΄ΡΠ΅ΡΡΡ ΡΡΠΈΡΡΠ²Π°ΡΡ ΠΎΡΠ½ΠΎΠ²Π½ΡΠ΅ ΠΌΠ°ΡΡΡΡΡΡ ΠΏΠ΅ΡΠ΅Π΄Π²ΠΈΠΆΠ΅Π½ΠΈΡ ΠΏΠΎ ΠΊΠ²Π°ΡΡΠΈΡΠ΅. ΠΡΠΎ Π½Π΅ΠΎΠ±Ρ ΠΎΠ΄ΠΈΠΌΠΎ Π΄Π»Ρ ΡΠΎΠ³ΠΎ, ΡΡΠΎΠ±Ρ Π½Π΅ ΠΏΠ΅ΡΠ΅ΠΊΡΡΡΡ ΠΈΡ Π΄ΠΈΠ²Π°Π½ΠΎΠΌ, ΡΡΠΌΠ±ΠΎΠΉ, ΡΡΠΎΠ»ΠΈΠΊΠΎΠΌ ΠΈ ΡΠ΄.
Π£Π΄Π°ΡΠ½ΡΠΌ Π²Π°ΡΠΈΠ°Π½ΡΠΎΠΌ ΡΡΠ°Π½Π΅Ρ ΠΌΠ΅Π±Π΅Π»Ρ Ρ ΡΡΠ½ΠΊΡΠΈΠ΅ΠΉ ΡΡΠ°Π½ΡΡΠΎΡΠΌΠ°ΡΠΈΠΈ. ΠΠ½Π° Π½Π΅ Π·Π°Π½ΠΈΠΌΠ°Π΅Ρ ΠΌΠ½ΠΎΠ³ΠΎ ΡΠ²ΠΎΠ±ΠΎΠ΄Π½ΠΎΠ³ΠΎ ΠΌΠ΅ΡΡΠ° ΠΈ ΡΠ²Π»ΡΠ΅ΡΡΡ ΠΌΠ½ΠΎΠ³ΠΎΡΡΠ½ΠΊΡΠΈΠΎΠ½Π°Π»ΡΠ½ΠΎΠΉ. ΠΡΠ±ΠΈΡΠ°ΡΡ ΠΏΠ»ΠΎΡΠ°Π΄Ρ Π΄Π»Ρ ΡΠ°ΠΊΠΈΡ ΠΎΠ±ΡΠ΅ΠΊΡΠΎΠ² Π½Π΅ΠΎΠ±Ρ ΠΎΠ΄ΠΈΠΌΠΎ Π² ΡΠΎΠΎΡΠ²Π΅ΡΡΡΠ²ΠΈΠΈ Ρ ΠΈΡ ΡΠ°Π·ΠΌΠ΅ΡΠΎΠΌ Π² ΡΠ°Π·ΠΎΠ±ΡΠ°Π½Π½ΠΎΠΌ Π²ΠΈΠ΄Π΅.
ΠΡΠ»ΠΈ Π²Ρ ΡΠ°Π·Π΄Π΅Π»ΡΠ΅ΡΠ΅ Π·ΠΎΠ½Ρ Ρ ΠΏΠΎΠΌΠΎΡΡΡ Π΄Π΅ΡΠ°Π»Π΅ΠΉ, ΠΈΠΌΠ΅ΡΡΠΈΡ ΡΠ°Π·Π½ΡΠ΅ ΡΠ°ΡΡΠ²Π΅ΡΠΊΠΈ, ΡΠΎ ΡΡΠΎΠΈΡ ΡΡΠΈΡΡΠ²Π°ΡΡ ΠΈΡ ΡΠΎΡΠ΅ΡΠ°Π½ΠΈΠ΅ Ρ ΠΎΠ±ΡΠ΅ΠΉ ΡΡΠΈΠ»ΠΈΡΡΠΈΠΊΠΎΠΉ ΠΊΠ²Π°ΡΡΠΈΡΡ.
ΠΠ°ΠΆΠ½ΡΡ ΡΠΎΠ»Ρ ΠΈΠ³ΡΠ°Π΅Ρ ΡΡΡΠΎΠ΅Π½ΠΈΠ΅ ΠΆΠΈΠ»ΠΎΠ³ΠΎ ΠΏΠΎΠΌΠ΅ΡΠ΅Π½ΠΈΡ. ΠΠ²Π°ΡΡΠΈΡΠ° ΠΌΠΎΠΆΠ΅Ρ ΠΈΠΌΠ΅ΡΡ ΠΊΠ²Π°Π΄ΡΠ°ΡΠ½ΡΡ ΠΈΠ»ΠΈ ΠΏΡΡΠΌΠΎΡΠ³ΠΎΠ»ΡΠ½ΡΡ ΡΠΎΡΠΌΡ.
ΠΠΎΠ»ΡΡΠΎΠΉ ΠΏΠΎΠΏΡΠ»ΡΡΠ½ΠΎΡΡΡΡ ΠΏΠΎΠ»ΡΠ·ΡΡΡΡΡ ΠΏΡΡΠΌΠΎΡΠ³ΠΎΠ»ΡΠ½ΡΠ΅ Π²Π°ΡΠΈΠ°Π½ΡΡ. ΠΠ²Π°ΡΡΠΈΡΡ ΠΏΠΎΠ΄ΠΎΠ±Π½ΠΎΠ³ΠΎ ΡΡΡΠΎΠ΅Π½ΠΈΡ ΠΎΡΠ½ΠΎΡΡΡΡΡ ΠΊ Π²ΠΎΡΡΡΠ΅Π±ΠΎΠ²Π°Π½Π½ΠΎΠΌΡ ΡΠΊΠΎΠ½ΠΎΠΌ ΠΊΠ»Π°ΡΡΡ ΠΈ ΠΎΡΠ»ΠΈΡΠ°ΡΡΡΡ Π½Π΅Π±ΠΎΠ»ΡΡΠΎΠΉ ΡΡΠΎΠΈΠΌΠΎΡΡΡΡ. ΠΠ½ΠΈ ΠΈΠΌΠ΅ΡΡ Π²ΡΡΡΠ½ΡΡΡΡ ΡΠΎΡΠΌΡ ΠΈ ΠΎΡΠ½Π°ΡΠ°ΡΡΡΡ ΠΎΠ΄Π½ΠΈΠΌ ΠΎΠΊΠ½ΠΎΠΌ. ΠΠ°ΠΊ ΠΏΡΠ°Π²ΠΈΠ»ΠΎ, ΡΠΎΠΎΡΠ½ΠΎΡΠ΅Π½ΠΈΠ΅ Π΄Π»ΠΈΠ½Ρ ΠΈ ΡΠΈΡΠΈΠ½Ρ ΡΠΎΡΡΠ°Π²Π»ΡΠ΅Ρ 1 ΠΊ 1,25 ΠΈΠ»ΠΈ 1 ΠΊ 3. Π Π½Π°ΡΠΎΠ΄Π΅ ΡΠ°ΠΊΠΈΠ΅ ΠΆΠΈΠ»ΠΈΡΠ° Π½Π°Π·ΡΠ²Π°ΡΡ ΠΏΠ΅Π½Π°Π»Π°ΠΌΠΈ, Π²Π°Π³ΠΎΠ½Π°ΠΌΠΈ ΠΈΠ»ΠΈ ΡΡΠ½Π½Π΅Π»ΡΠΌΠΈ.
Π Π±ΠΎΠ»ΡΡΠΈΠ½ΡΡΠ²Π΅ ΡΠ»ΡΡΠ°Π΅Π² Π²Ρ ΠΎΠ΄Π½Π°Ρ Π΄Π²Π΅ΡΡ ΡΠ°ΡΠΏΠΎΠ»Π°Π³Π°Π΅ΡΡΡ Π½Π°ΠΏΡΠΎΡΠΈΠ² Π΅Π΄ΠΈΠ½ΡΡΠ²Π΅Π½Π½ΠΎΠ³ΠΎ ΠΎΠΊΠ½Π°. ΠΠ°Ρ ΠΎΠ΄ΡΡΡΡ ΡΡΠΈ ΡΠ»Π΅ΠΌΠ΅Π½ΡΡ Π² ΠΊΠΎΡΠΎΡΠΊΠΎΠΉ ΡΠ΅ΡΠΊΠ΅.
ΠΡΡΠΌΠΎΡΠ³ΠΎΠ»ΡΠ½ΡΠ΅ ΡΡΡΠ΄ΠΈΠΈ ΠΎΡΠ»ΠΈΡΠ°ΡΡΡΡ ΡΠ²ΠΎΠ΅ΠΎΠ±ΡΠ°Π·Π½ΡΠΌ ΡΠ°ΡΠΏΠΎΠ»ΠΎΠΆΠ΅Π½ΠΈΠ΅ΠΌ ΡΡΠ½ΠΊΡΠΈΠΎΠ½Π°Π»ΡΠ½ΡΡ Π·ΠΎΠ½. ΠΡ ΠΎΠ΄Π½Π°Ρ ΠΎΠ±Π»Π°ΡΡΡ ΠΏΠ΅ΡΠ΅Ρ ΠΎΠ΄ΠΈΡ Π² Ρ ΠΎΠ»Π», Π° ΡΠΏΡΠ°Π²Π° ΠΈΠ»ΠΈ ΡΠ»Π΅Π²Π° Π½Π°Ρ ΠΎΠ΄ΠΈΡΡΡ ΡΠ°ΠΊΠΎΠΉ ΡΠ»Π΅ΠΌΠ΅Π½Ρ, ΠΊΠ°ΠΊ ΡΠ°Π½ΡΠ·Π΅Π». Π ΡΡΠΎΠΉ Π·ΠΎΠ½Π΅ ΠΏΡΠΈΠΊΡΠ΅ΠΏΠ»ΡΠ΅ΡΡΡ ΠΊΡΡ Π½Ρ, ΠΏΠΎΡΠ»Π΅ ΠΊΠΎΡΠΎΡΠΎΠΉ ΡΠ»Π΅Π΄ΡΠ΅Ρ ΠΆΠΈΠ»Π°Ρ ΠΊΠΎΠΌΠ½Π°ΡΠ°, ΠΈ ΡΠΎΠ»ΡΠΊΠΎ Π·Π° Π½Π΅ΠΉ ΠΈΠ΄Π΅Ρ Π±Π°Π»ΠΊΠΎΠ½ ΠΈΠ»ΠΈ Π»ΠΎΠ΄ΠΆΠΈΡ.
Π’Π°ΠΊΠ°Ρ ΠΊΠ²Π°ΡΡΠΈΡΠ° ΠΌΠΎΠΆΠ΅Ρ Π±ΡΡΡ ΡΠ·ΠΊΠΎΠΉ ΠΈ ΠΌΠ°Π»ΠΎΠ³Π°Π±Π°ΡΠΈΡΠ½ΠΎΠΉ. ΠΠ»Π°Π½ΠΈΡΠΎΠ²ΠΊΡ Π² ΠΏΡΡΠΌΠΎΡΠ³ΠΎΠ»ΡΠ½ΡΡ ΡΡΡΠ΄ΠΈΡΡ ΡΠ»Π΅Π΄ΡΠ΅Ρ ΠΎΠ±Π΄ΡΠΌΡΠ²Π°ΡΡ ΠΎΡΠΎΠ±Π΅Π½Π½ΠΎ ΡΡΠ°ΡΠ΅Π»ΡΠ½ΠΎ, ΡΡΠΎΠ±Ρ ΠΏΡΠΎΠ΄ΡΠΊΡΠΈΠ²Π½ΠΎ ΠΈΡΠΏΠΎΠ»ΡΠ·ΠΎΠ²Π°ΡΡ Π²ΡΠ΅ ΠΈΠΌΠ΅ΡΡΠ΅Π΅ΡΡ ΠΏΡΠΎΡΡΡΠ°Π½ΡΡΠ²ΠΎ, Π½Π΅ Π΄Π΅Π»Π°Ρ Π΅Π³ΠΎ ΡΠ΅ΡΠ½ΡΠΌ ΠΈ Π½Π΅ΡΡΡΠ½ΡΠΌ.
ΠΠ΅ ΠΌΠ΅Π½Π΅Π΅ ΠΏΠΎΠΏΡΠ»ΡΡΠ½Π° ΠΊΠ²Π°Π΄ΡΠ°ΡΠ½Π°Ρ ΠΏΠ»Π°Π½ΠΈΡΠΎΠ²ΠΊΠ°. ΠΠ²Π°ΡΡΠΈΡΡ Ρ ΡΠ°ΠΊΠΈΠΌ ΡΡΡΠΎΠ΅Π½ΠΈΠ΅ΠΌ ΠΈΠΌΠ΅ΡΡ ΠΎΠ΄ΠΈΠ½Π°ΠΊΠΎΠ²ΡΠ΅ ΠΏΠΎΠΊΠ°Π·Π°ΡΠ΅Π»ΠΈ Π΄Π»ΠΈΠ½Ρ ΠΈ ΡΠΈΡΠΈΠ½Ρ. ΠΠΎΠ΄ΠΎΠ±Π½ΠΎΠ΅ ΠΆΠΈΠ»ΡΠ΅ ΡΡΠΈΡΠ°Π΅ΡΡΡ ΠΈΠ΄Π΅Π°Π»ΡΠ½ΡΠΌ Π² ΠΏΠ»Π°Π½Π΅ ΠΊΠΎΠΌΡΠΎΡΡΠ½ΠΎΠ³ΠΎ ΠΎΠ±ΡΡΡΡΠΎΠΉΡΡΠ²Π°, ΠΎΠ½ΠΎ ΠΏΡΠ΅ΠΊΡΠ°ΡΠ½ΠΎ ΠΏΠΎΠ΄Ρ ΠΎΠ΄ΡΡ Π΄Π»Ρ ΡΠΎΡΠΌΠΈΡΠΎΠ²Π°Π½ΠΈΡ ΡΡΡΠ½ΠΎΠΉ ΠΎΠ±ΡΡΠ°Π½ΠΎΠ²ΠΊΠΈ. ΠΠ°ΠΊ ΠΏΡΠ°Π²ΠΈΠ»ΠΎ, ΡΡΠΈ ΠΊΠ²Π°ΡΡΠΈΡΡ ΠΈΠΌΠ΅ΡΡ Π΄Π²Π° ΠΎΠΊΠ½Π°.
ΠΠΌΠ΅Ρ ΠΊΠ²Π°Π΄ΡΠ°ΡΠ½ΡΡ ΠΊΠ²Π°ΡΡΠΈΡΡ, ΠΌΠΎΠΆΠ½ΠΎ ΡΠ°ΡΠΏΡΠ΅Π΄Π΅Π»ΠΈΡΡ ΡΡΠ½ΠΊΡΠΈΠΎΠ½Π°Π»ΡΠ½ΡΠ΅ Π·ΠΎΠ½Ρ, ΠΊΠ°ΠΊ Π²Π°ΠΌ ΡΠ³ΠΎΠ΄Π½ΠΎ. ΠΠ΅ΡΠ΅Π΄ΠΊΠΎ Ρ ΠΎΠ·ΡΠ΅Π²Π° ΡΠ°Π·ΠΌΠ΅ΡΠ°ΡΡ Π³ΠΎΡΡΠΈΠ½ΡΡ, ΠΊΡΡ Π½Ρ, ΡΠΏΠ°Π»ΡΠ½Ρ ΠΈ ΡΠ°Π½ΡΠ·Π΅Π» Π² ΡΠ³Π»ΠΎΠ²ΡΡ ΠΏΡΠΎΡΡΡΠ°Π½ΡΡΠ²Π°Ρ , ΠΎΡΡΠ°Π²Π»ΡΡ ΡΠ΅Π½ΡΡΠ°Π»ΡΠ½ΡΡ ΡΠ°ΡΡΡ ΡΠ²ΠΎΠ±ΠΎΠ΄Π½ΠΎΠΉ. ΠΠ»Π°Π½ΠΈΡΠΎΠ²Π°Π½ΠΈΠ΅ ΡΠ°ΠΊΠΎΠΉ ΠΊΠ²Π°ΡΡΠΈΡΡ Π·Π°Π²ΠΈΡΠΈΡ ΠΎΡ Π»ΠΈΡΠ½ΡΡ ΠΏΡΠ΅Π΄ΠΏΠΎΡΡΠ΅Π½ΠΈΠΉ Π΅Π΅ Π²Π»Π°Π΄Π΅Π»ΡΡΠ°.
ΠΡΠΈΠΌΠ΅ΡΡ Π΄ΠΈΠ·Π°ΠΉΠ½ ΠΏΡΠΎΠ΅ΠΊΡΠΎΠ²
ΠΠΎΠ΄Π½ΡΡ ΠΊΠ²Π°ΡΡΠΈΡΡ-ΡΡΡΠ΄ΠΈΡ ΠΌΠΎΠΆΠ½ΠΎ ΠΎΠ±ΡΡΠ°Π²ΠΈΡΡ ΡΠ°ΠΊ, ΡΡΠΎ ΠΎΠ½Π° ΡΡΠ°Π½Π΅Ρ ΠΎΡΠ΅Π½Ρ ΡΡΡΠ½ΠΎΠΉ ΠΈ Π³ΠΎΡΡΠ΅ΠΏΡΠΈΠΈΠΌΠ½ΠΎΠΉ. Π Π°ΡΡΠΌΠΎΡΡΠΈΠΌ ΠΏΠΎΠ΄ΡΠΎΠ±Π½Π΅Π΅ Π½Π΅ΡΠΊΠΎΠ»ΡΠΊΠΎ ΠΈΠ½ΡΠ΅ΡΠ΅ΡΠ½ΡΡ Π΄ΠΈΠ·Π°ΠΉΠ½ΠΎΠ² ΠΏΠΎΠ΄ΠΎΠ±Π½ΡΡ ΠΆΠΈΠ»ΠΈΡ.
ΠΠ°Π»Π΅Π½ΡΠΊΡΡ ΡΡΡΠ΄ΠΈΡ ΠΏΠ»ΠΎΡΠ°Π΄ΡΡ 29 ΠΊΠ². ΠΌ ΠΌΠΎΠΆΠ½ΠΎ Π²ΠΈΠ·ΡΠ°Π»ΡΠ½ΠΎ ΡΠ΄Π΅Π»Π°ΡΡ ΠΏΡΠΎΡΡΠΎΡΠ½ΠΎΠΉ ΠΈ ΡΠ²Π΅ΡΠ»ΠΎΠΉ. ΠΠ»Ρ ΡΡΠΎΠ³ΠΎ Π½Π΅ΠΎΠ±Ρ ΠΎΠ΄ΠΈΠΌΠΎ ΠΎΠ±ΡΠ°ΡΠΈΡΡΡΡ ΠΊ ΡΠ²Π΅ΠΆΠ΅ΠΌΡ Π±Π΅Π»ΠΎΠΌΡ ΡΠ²Π΅ΡΡ Π² ΠΎΡΠ΄Π΅Π»ΠΊΠ΅. Π‘Π°Π½ΡΠ·Π΅Π» ΠΌΠΎΠΆΠ½ΠΎ ΡΠ°Π·ΠΌΠ΅ΡΡΠΈΡΡ ΠΏΠΎ ΠΏΡΠ°Π²ΡΡ ΡΡΠΎΡΠΎΠ½Ρ ΠΎΡ Π²Ρ ΠΎΠ΄Π½ΠΎΠΉ Π΄Π²Π΅ΡΠΈ. ΠΠΎΡΠ»Π΅ ΡΡΠΎΠΉ Π·ΠΎΠ½Ρ ΠΎΡΠΊΡΠΎΠ΅ΡΡΡ ΡΠ²ΠΎΠ±ΠΎΠ΄Π½Π°Ρ ΠΏΠ»ΠΎΡΠ°Π΄Ρ Ρ Π΄Π²ΡΠΌΡ ΠΎΠΊΠ½Π°ΠΌΠΈ, Π½Π° ΠΊΠΎΡΠΎΡΠΎΠΉ Ρ ΠΏΡΠ°Π²ΠΎΠΉ ΡΡΠ΅Π½Ρ ΡΠ»Π΅Π΄ΡΠ΅Ρ ΡΡΡΠ°Π½ΠΎΠ²ΠΈΡΡ ΠΊΡΡ ΠΎΠ½Π½ΡΡ ΠΌΠ΅Π±Π΅Π»Ρ Ρ Π±ΡΡΠΎΠ²ΠΎΠΉ ΡΠ΅Ρ Π½ΠΈΠΊΠΎΠΉ.
ΠΠΎΡΠ»Π΅ ΡΡΠΈΡ ΠΎΠ±ΡΠ΅ΠΊΡΠΎΠ² ΠΌΠΎΠΆΠ½ΠΎ ΡΠΎΠΎΡΡΠ΄ΠΈΡΡ Π½Π΅Π±ΠΎΠ»ΡΡΡΡ ΠΏΠ΅ΡΠ΅Π³ΠΎΡΠΎΠ΄ΠΊΡ, Π·Π° ΠΊΠΎΡΠΎΡΠΎΠΉ ΠΎΡΠ³Π°Π½ΠΈΠ·ΠΎΠ²Π°ΡΡ ΡΠΏΠ°Π»ΡΠ½ΠΎΠ΅ ΠΌΠ΅ΡΡΠΎ. ΠΠ°ΠΏΡΠΎΡΠΈΠ² ΠΊΡΡ ΠΎΠ½Π½ΠΎΠΉ ΡΠ΅Ρ Π½ΠΈΠΊΠΈ Π½Π°ΠΉΠ΄Π΅Ρ ΡΠ²ΠΎΠ΅ ΠΌΠ΅ΡΡΠΎ ΠΎΠ±Π΅Π΄Π΅Π½Π½Π°Ρ Π·ΠΎΠ½Π° Ρ Π²ΡΡΠΎΠΊΠΈΠΌΠΈ ΡΡΡΠ»ΡΡΠΌΠΈ ΠΈ ΡΠ·ΠΊΠΈΠΌ ΡΡΠΎΠ»ΠΎΠΌ. Π’Π°ΠΊ ΠΌΠΎΠΆΠ½ΠΎ ΠΏΠΎΠ»Π½ΠΎΡΡΡΡ ΠΎΠ±ΠΎΡΡΠ΄ΠΎΠ²Π°ΡΡ ΠΏΡΠ°Π²ΡΡ ΡΡΠΎΡΠΎΠ½Ρ Π½Π΅Π±ΠΎΠ»ΡΡΠΎΠΉ ΠΊΠ²Π°ΡΡΠΈΡΡ.
ΠΠ°ΠΏΡΠΎΡΠΈΠ² ΠΎΠ±Π΅Π΄Π΅Π½Π½ΠΎΠ³ΠΎ ΡΠ³ΠΎΠ»ΠΊΠ° ΠΈ ΡΠΏΠ°Π»ΡΠ½ΠΎΠΉ Π·ΠΎΠ½Ρ ΡΠ»Π΅Π΄ΡΠ΅Ρ ΠΎΠ±ΠΎΡΡΠ΄ΠΎΠ²Π°ΡΡ ΡΡΡΠ½ΡΡ Π³ΠΎΡΡΠΈΠ½ΡΡ. Π£ ΠΏΠ΅ΡΠ²ΠΎΠ³ΠΎ ΠΎΠΊΠ½Π° ΠΌΠΎΠΆΠ½ΠΎ ΠΏΠΎΡΡΠ°Π²ΠΈΡΡ Π½Π΅Π±ΠΎΠ»ΡΡΠΎΠΉ Π΄ΠΈΠ²Π°Π½ Ρ ΠΊΠΎΡΠ΅ΠΉΠ½ΡΠΌ ΡΡΠΎΠ»ΠΈΠΊΠΎΠΌ ΠΈΠ· ΡΠ²Π΅ΡΠ»ΠΎΠ³ΠΎ Π΄Π΅ΡΠ΅Π²Π°. ΠΠΎΠ·Π»Π΅ Π΄ΠΈΠ²Π°Π½Π° Π½Π°ΠΉΠ΄ΡΡ ΡΠ²ΠΎΠ΅ ΠΌΠ΅ΡΡΠΎ Π½Π΅Π±ΠΎΠ»ΡΡΠΈΠ΅ ΠΊΡΠ΅ΡΠ»Π° ΠΈΠ»ΠΈ ΡΡΡΠ»ΡΡ.
Π’Π΅Π»Π΅Π²ΠΈΠ·ΠΎΡ ΠΌΠΎΠΆΠ½ΠΎ ΠΏΠΎΡΡΠ°Π²ΠΈΡΡ Π²ΠΎΠ·Π»Π΅ ΠΊΠΎΡΠ΅ΠΉΠ½ΠΎΠ³ΠΎ ΡΡΠΎΠ»ΠΈΠΊΠ° ΠΈΠ»ΠΈ ΠΏΠΎΠ²Π΅ΡΠΈΡΡ Π½Π° ΡΡΠ΅Π½Ρ.
Π’Π°ΠΊΠ°Ρ ΠΏΠ»Π°Π½ΠΈΡΠΎΠ²ΠΊΠ° Π±ΡΠ΄Π΅Ρ Π²ΡΠ³Π»ΡΠ΄Π΅ΡΡ Π³Π°ΡΠΌΠΎΠ½ΠΈΡΠ½ΠΎ, Π΅ΡΠ»ΠΈ ΡΡΠ΅Π½Ρ Π² Π½Π΅ΠΉ ΠΎΡΠ΄Π΅Π»Π°ΡΡ Π±Π΅Π»ΡΠΌΠΈ ΠΎΠ±ΠΎΡΠΌΠΈ ΠΈΠ»ΠΈ ΡΡΡΠΊΠ°ΡΡΡΠΊΠΎΠΉ, Π½Π° ΠΏΠΎΠ» ΠΏΠΎΠ»ΠΎΠΆΠΈΡΡ ΡΠ²Π΅ΡΠ»ΠΎ-ΡΠ΅ΡΡΠΉ ΠΈΠ»ΠΈ Π±Π΅Π»ΡΠΉ Π»Π°ΠΌΠΈΠ½Π°Ρ, Π° Π²ΡΡ ΠΌΠ΅Π±Π΅Π»Ρ ΠΏΠΎΠ΄ΠΎΠ±ΡΠ°ΡΡ Π² ΡΠ²Π΅ΡΠ»ΡΡ ΠΈ ΠΏΠ°ΡΡΠ΅Π»ΡΠ½ΡΡ ΡΠΎΠ½Π°Ρ . Π ΠΈΡΠΎΠ³Π΅ Ρ Π²Π°Ρ ΠΏΠΎΠ»ΡΡΠΈΡΡΡ ΠΎΡΠ°ΡΠΎΠ²Π°ΡΠ΅Π»ΡΠ½Π°Ρ ΠΊΠ²Π°ΡΡΠΈΡΠ° Π² Π½Π΅ΠΆΠ½ΠΎΠΌ ΠΈ ΡΠΎΠΌΠ°Π½ΡΠΈΡΠ½ΠΎΠΌ ΡΡΠΈΠ»Π΅.
ΠΠ»Ρ ΠΌΠ°Π»ΠΎΠ³Π°Π±Π°ΡΠΈΡΠ½ΠΎΠΉ ΡΡΡΠ΄ΠΈΠΈ, ΠΏΠ»ΠΎΡΠ°Π΄Ρ ΠΊΠΎΡΠΎΡΠΎΠΉ Π½Π΅ ΠΏΡΠ΅Π²ΡΡΠ°Π΅Ρ 20 ΠΊΠ². ΠΌ, ΠΏΠΎΠ΄ΠΎΠΉΠ΄Π΅Ρ ΠΌΠΈΠ½ΠΈΠΌΠ°Π»ΠΈΡΡΠΈΡΠ½ΡΠΉ ΡΠΊΠ°Π½Π΄ΠΈΠ½Π°Π²ΡΠΊΠΈΠΉ Π΄ΠΈΠ·Π°ΠΉΠ½. Π ΡΡΠ»ΠΎΠ²ΠΈΡΡ ΡΠ΄ΠΎΠ±Π½ΠΎΠΉ ΠΊΠ²Π°Π΄ΡΠ°ΡΠ½ΠΎΠΉ ΠΏΠ»Π°Π½ΠΈΡΠΎΠ²ΠΊΠΈ ΠΌΠΎΠΆΠ½ΠΎ ΡΠΌΠ΅ΡΡΠΈΡΡ Π²ΡΠ΅ ΡΡΠ½ΠΊΡΠΈΠΎΠ½Π°Π»ΡΠ½ΡΠ΅ Π·ΠΎΠ½Ρ.
ΠΠΎ Π»Π΅Π²ΡΡ ΡΡΠΎΡΠΎΠ½Ρ ΠΎΡ Π²Ρ ΠΎΠ΄Π½ΠΎΠΉ Π΄Π²Π΅ΡΠΈ Ρ ΡΡΠ΅Π½Ρ ΡΠ»Π΅Π΄ΡΠ΅Ρ ΡΡΡΠ°Π½ΠΎΠ²ΠΈΡΡ ΠΊΡΡ ΠΎΠ½Π½ΡΠ΅ ΡΡΠΌΠ±Ρ (Π½Π°ΠΏΠΎΠ»ΡΠ½ΡΠ΅ ΠΈ Π½Π°Π²Π΅ΡΠ½ΡΠ΅). ΠΠ»Ρ ΠΏΠΎΠ΄ΠΎΠ±Π½ΠΎΠΉ ΠΌΠ΅Π±Π΅Π»ΠΈ ΠΈΠ΄Π΅Π°Π»ΡΠ½ΡΠΌ ΡΠ΅ΡΠ΅Π½ΠΈΠ΅ΠΌ ΡΡΠ°Π½Π΅Ρ Π½Π΅Π±ΠΎΠ»ΡΡΠ°Ρ ΡΠ»Π΅ΠΊΡΡΠΈΡΠ΅ΡΠΊΠ°Ρ ΠΏΠ»ΠΈΡΠ° Ρ ΡΠ΅Π½ΡΠΎΡΠ½ΡΠΌ ΡΠΏΡΠ°Π²Π»Π΅Π½ΠΈΠ΅ΠΌ.
ΠΡΠΈ ΠΏΡΠ΅Π΄ΠΌΠ΅ΡΡ Π±ΡΠ΄ΡΡ ΡΠ°ΡΠΏΠΎΠ»Π°Π³Π°ΡΡΡΡ Π½Π°ΠΏΡΠΎΡΠΈΠ² Π΄Π²ΡΡ Π½Π΅ΡΠΈΡΠΎΠΊΠΈΡ ΠΎΠΊΠΎΠ½. ΠΡΡΠ°Π²ΡΠ΅Π΅ΡΡ ΠΏΡΠΎΡΡΡΠ°Π½ΡΡΠ²ΠΎ ΡΠ»Π΅Π΄ΡΠ΅Ρ ΠΎΡΠ²Π΅ΡΡΠΈ Π΄Π»Ρ Π³ΠΎΡΡΠΈΠ½ΠΎΠΉ, ΡΠ°Π±ΠΎΡΠ΅ΠΉ Π·ΠΎΠ½Ρ, ΡΠΏΠ°Π»ΡΠ½ΠΈ ΠΈ ΡΠ°Π½ΡΠ·Π»Π°.
ΠΠ»Ρ Π³ΠΎΡΡΠΈΠ½ΠΎΠΉ Π·ΠΎΠ½Ρ ΠΌΠΎΠΆΠ½ΠΎ ΠΏΠΎΠ΄ΠΎΠ±ΡΠ°ΡΡ ΠΌΠ°Π»Π΅Π½ΡΠΊΠΈΠΉ Π΄ΠΈΠ²Π°Π½ ΠΈΠ»ΠΈ Π΄Π²Π° ΡΠ°ΡΠΊΠ»Π°Π΄Π½ΡΡ ΠΊΡΠ΅ΡΠ»Π°. ΠΠΎΠΆΠ½ΠΎ ΠΏΠΎΡΡΠ°Π²ΠΈΡΡ Π²ΠΎΠ·Π»Π΅ Π½ΠΈΡ ΡΠ²Π΅ΡΠ»ΡΠΉ ΠΊΠΎΡΠ΅ΠΉΠ½ΡΠΉ ΡΡΠΎΠ», ΠΊΠΎΡΠΎΡΡΠΉ ΠΌΠΎΠΆΠ΅Ρ ΠΈΠ³ΡΠ°ΡΡ ΡΠΎΠ»Ρ ΠΎΠ±Π΅Π΄Π΅Π½Π½ΠΎΠ³ΠΎ. ΠΡΠ° Π·ΠΎΠ½Π° Π±ΡΠ΄Π΅Ρ ΡΠ°ΡΠΏΠΎΠ»Π°Π³Π°ΡΡΡΡ Ρ Π»Π΅Π²ΠΎΠΉ ΡΡΠ΅Π½Ρ Π½Π°ΠΏΡΠΎΡΠΈΠ² ΠΏΠ΅ΡΠ²ΠΎΠ³ΠΎ ΠΎΠΊΠ½Π°.
Π’Π΅ΠΏΠ΅ΡΡ ΠΌΠΎΠΆΠ½ΠΎ ΠΏΠ΅ΡΠ΅Ρ ΠΎΠ΄ΠΈΡΡ ΠΊ ΠΎΡΠΎΡΠΌΠ»Π΅Π½ΠΈΡ Π»Π΅Π²ΠΎΠΉ ΡΡΠΎΡΠΎΠ½Ρ ΠΊΠ²Π°ΡΡΠΈΡΡ. ΠΠ΄Π΅ΡΡ Π½Π°ΠΉΠ΄Π΅ΡΡΡ ΠΌΠ΅ΡΡΠΎ Π΄Π²ΡΡΠΏΠ°Π»ΡΠ½ΠΎΠΉ ΠΊΡΠΎΠ²Π°ΡΠΈ, Π° Ρ ΡΠ°ΠΌΠΎΠ³ΠΎ ΠΎΠΊΠ½Π° (Π²ΡΠΎΡΠΎΠ³ΠΎ) ΠΌΠΎΠΆΠ½ΠΎ ΠΎΡΠ³Π°Π½ΠΈΠ·ΠΎΠ²Π°ΡΡ Π½Π΅Π±ΠΎΠ»ΡΡΡΡ ΡΠ°Π±ΠΎΡΡΡ Π·ΠΎΠ½Ρ Ρ Π½Π°ΡΡΠ΅Π½Π½ΠΎΠΉ ΡΡΠΎΠ»Π΅ΡΠ½ΠΈΡΠ΅ΠΉ ΠΈ ΠΏΠΎΠ΄Π²Π΅ΡΠ½ΡΠΌΠΈ ΠΏΠΎΠ»ΠΊΠ°ΠΌΠΈ.
ΠΡΠ΄Π΅Π»Π°ΠΉΡΠ΅ ΠΏΠΎΠΌΠ΅ΡΠ΅Π½ΠΈΠ΅ ΠΎΠ±ΠΎΡΠΌΠΈ Ρ ΠΊΠΎΠ½ΡΡΠ°ΡΡΠ½ΡΠΌΠΈ ΡΠ·ΠΎΡΠ°ΠΌΠΈ, Π° ΠΏΠΎΠ» ΠΈ ΠΏΠΎΡΠΎΠ»ΠΎΠΊ ΡΠ΄Π΅Π»Π°ΠΉΡΠ΅ Π±Π΅Π»ΠΎΡΠ½Π΅ΠΆΠ½ΠΎ-Π±Π΅Π»ΡΠΌΠΈ. Π ΡΠ°ΠΊΠΎΠΉ ΠΎΠ±ΡΡΠ°Π½ΠΎΠ²ΠΊΠ΅ Π±ΡΠ΄Π΅Ρ Π³Π°ΡΠΌΠΎΠ½ΠΈΡΠ½ΠΎ ΡΠΌΠΎΡΡΠ΅ΡΡΡΡ ΠΌΠ΅Π±Π΅Π»Ρ Π² Π½Π΅ΠΉΡΡΠ°Π»ΡΠ½ΡΡ ΠΈ ΠΊΠ»Π°ΡΡΠΈΡΠ΅ΡΠΊΠΈΡ ΠΎΡΡΠ΅Π½ΠΊΠ°Ρ .
Π Π°ΡΡΠΌΠΎΡΡΠΈΠΌ ΠΎΠ΄ΠΈΠ½ ΠΈΠ· Π²Π°ΡΠΈΠ°Π½ΡΠΎΠ² ΠΎΡΠΎΡΠΌΠ»Π΅Π½ΠΈΡ Π½Π΅Π±ΠΎΠ»ΡΡΠΎΠΉ ΠΊΠ²Π°ΡΡΠΈΡΡ ΠΏΠ»ΠΎΡΠ°Π΄ΡΡ 30 ΠΊΠ². ΠΌ. ΠΠΎΡΠ»Π΅ Π²Ρ ΠΎΠ΄Π½ΠΎΠΉ Π΄Π²Π΅ΡΠΈ ΠΌΠΎΠΆΠ½ΠΎ ΠΎΡΠ³Π°Π½ΠΈΠ·ΠΎΠ²Π°ΡΡ ΠΊΡΡ Π½Ρ, Π° Π² ΡΠ΅Π½ΡΡΠ΅ ΠΏΠΎΡΡΠ°Π²ΠΈΡΡ ΡΠΎΡΠΊΠΎΡΠ½ΡΠΉ ΡΠ³Π»ΠΎΠ²ΠΎΠΉ Π΄ΠΈΠ²Π°Π½. ΠΠ° ΡΡΠ΅Π½Ρ ΠΌΠΎΠΆΠ½ΠΎ ΠΏΠΎΠ²Π΅ΡΠΈΡΡ ΠΏΠΎΠ»ΠΊΠΈ. ΠΠ°ΠΏΡΠΎΡΠΈΠ² Π΄ΠΈΠ²Π°Π½Π° ΡΡΠΎΠΈΡ ΡΠ°Π·ΠΌΠ΅ΡΡΠΈΡΡ Π½Π΅Π±ΠΎΠ»ΡΡΠΎΠΉ ΡΡΠΎΠ», Π·Π° ΠΊΠΎΡΠΎΡΡΠΌ (Ρ Π»Π΅Π²ΠΎΠΉ ΡΡΠ΅Π½Ρ) Π½Π°ΠΉΠ΄Π΅Ρ ΡΠ²ΠΎΠ΅ ΠΌΠ΅ΡΡΠΎ Π±ΠΎΠ»ΡΡΠΎΠΉ ΡΠ΅Π»Π΅Π²ΠΈΠ·ΠΎΡ ΠΈ Π½ΠΈΠ·ΠΊΠΈΠ΅ ΡΡΠΌΠ±Ρ.
Π Π°Π·Π΄Π΅Π»ΠΈΡΡ ΠΎΠ±Π΅Π΄Π΅Π½Π½ΡΡ Π·ΠΎΠ½Ρ ΠΈ Π³ΠΎΡΡΠΈΠ½ΡΡ ΠΌΠΎΠΆΠ½ΠΎ ΠΏΡΠΈ ΠΏΠΎΠΌΠΎΡΠΈ ΠΌΠ½ΠΎΠ³ΠΎΡΡΠΎΠ²Π½Π΅Π²ΠΎΠ³ΠΎ ΠΏΠΎΡΠΎΠ»ΠΊΠ°, Π΄Π²Π΅ ΡΠ°ΡΡΠΈ ΠΊΠΎΡΠΎΡΠΎΠ³ΠΎ ΠΈΠΌΠ΅ΡΡ ΡΠ°Π·Π½ΡΠ΅ ΠΎΡΡΠ΅Π½ΠΊΠΈ ΡΠ΅ΡΠΎΠ³ΠΎ ΠΈΠ»ΠΈ Π±Π΅Π»ΠΎΠ³ΠΎ ΡΠ²Π΅ΡΠ°.
ΠΠ° ΠΊΡΡ ΠΎΠ½Π½ΠΎΠΉ Π·ΠΎΠ½ΠΎΠΉ ΠΌΠΎΠΆΠ½ΠΎ ΡΠ°ΡΠΏΠΎΠ»ΠΎΠΆΠΈΡΡ Π½Π΅Π±ΠΎΠ»ΡΡΡΡ ΠΊΠΎΠΌΠ½Π°ΡΡ ΠΏΠΎΠ΄ ΡΠ°Π½ΡΠ·Π΅Π».
ΠΡΠ»ΠΈ Π²Ρ Π»ΡΠ±ΠΈΡΠ΅ ΠΈΠ½Π΄ΡΡΡΡΠΈΠ°Π»ΡΠ½ΡΠΉ ΡΡΠΈΠ»Ρ, ΡΠΎ ΠΌΠ΅Π±Π΅Π»Ρ ΠΈ Π²Π½ΡΡΡΠ΅Π½Π½ΡΡ ΠΎΡΠ΄Π΅Π»ΠΊΡ ΡΠ»Π΅Π΄ΡΠ΅Ρ ΠΏΠΎΠ΄Π±ΠΈΡΠ°ΡΡ Π² ΡΠ΅ΡΡΡ , Π±Π΅Π»ΡΡ ΠΈ ΡΠ΅ΠΌΠ½ΠΎ-ΡΠ΅ΡΡΡ ΡΠΎΠ½Π°Ρ . ΠΠ΅ΡΡΠ°ΠΌΠΈ ΠΌΠΎΠΆΠ½ΠΎ ΠΎΡΡΠ°Π²ΠΈΡΡ ΠΎΠ±ΡΡΠ½ΡΠ΅ ΠΊΠΈΡΠΏΠΈΡΠ½ΡΠ΅ ΡΡΠ΅Π½Ρ Π±Π΅Π· ΡΠ°Π·Π½ΠΎΡΠ²Π΅ΡΠ½ΡΡ ΠΎΠ±ΠΎΠ΅Π² ΠΈ ΡΡΡΠΊΠ°ΡΡΡΠΊΠΈ.
Π‘ΡΡΠ΄ΠΈΠΈ, ΠΏΠ»ΠΎΡΠ°Π΄Ρ ΠΊΠΎΡΠΎΡΡΡ ΡΠΎΡΡΠ°Π²Π»ΡΠ΅Ρ 40 ΠΊΠ². ΠΌ ΠΈ Π±ΠΎΠ»Π΅Π΅, ΡΠ²Π»ΡΡΡΡΡ Π±ΠΎΠ»Π΅Π΅ Π²ΠΌΠ΅ΡΡΠΈΡΠ΅Π»ΡΠ½ΡΠΌΠΈ, ΡΠ΅ΠΌ Π²ΡΡΠ΅ΠΏΠ΅ΡΠ΅ΡΠΈΡΠ»Π΅Π½Π½ΡΠ΅ ΠΊΠ²Π°ΡΡΠΈΡΡ. Π Π½ΠΈΡ ΠΌΠΎΠΆΠ½ΠΎ ΠΎΡΡΠ°Π²ΠΈΡΡ Π±ΠΎΠ»ΡΡΠ΅ ΡΠ²ΠΎΠ±ΠΎΠ΄Π½ΠΎΠ³ΠΎ ΠΏΡΠΎΡΡΡΠ°Π½ΡΡΠ²Π° ΠΌΠ΅ΠΆΠ΄Ρ ΠΏΡΠ΅Π΄ΠΌΠ΅ΡΠ°ΠΌΠΈ ΠΌΠ΅Π±Π΅Π»ΠΈ ΠΈ ΡΡΠ½ΠΊΡΠΈΠΎΠ½Π°Π»ΡΠ½ΡΠΌΠΈ Π·ΠΎΠ½Π°ΠΌΠΈ.
Π ΡΠ°ΠΊΠΎΠΌ ΠΏΠΎΠΌΠ΅ΡΠ΅Π½ΠΈΠΈ ΡΠ»Π΅Π΄ΡΠ΅Ρ ΡΠΏΠ°Π»ΡΠ½ΡΡ Π·ΠΎΠ½Ρ ΠΎΠ±ΡΠ΅Π΄ΠΈΠ½ΠΈΡΡ Ρ ΡΠ°Π±ΠΎΡΠ΅ΠΉ. Π’Π°ΠΊ, Π²Ρ ΡΠΌΠΎΠΆΠ΅ΡΠ΅ ΠΈΠ·Π±Π΅ΠΆΠ°ΡΡ Π½Π΅ΠΆΠ΅Π»Π°ΡΠ΅Π»ΡΠ½ΠΎΠ³ΠΎ Π·Π°ΡΠ΅ΠΌΠ½Π΅Π½ΠΈΡ ΠΏΡΠΎΡΡΡΠ°Π½ΡΡΠ²Π° ΠΈ Π΅Π³ΠΎ Π²ΠΈΠ·ΡΠ°Π»ΡΠ½ΠΎΠ³ΠΎ ΡΡΠΆΠ΅Π½ΠΈΡ. ΠΡΠ΄Π΅Π»ΠΈΡΡ ΡΡΠΈ ΡΡΠ°ΡΡΠΊΠΈ ΡΠ»Π΅Π΄ΡΠ΅Ρ ΠΏΡΠΈ ΠΏΠΎΠΌΠΎΡΠΈ ΡΠ°Π·Π΄Π²ΠΈΠΆΠ½ΡΡ ΡΡΠ΅ΠΊΠ»ΡΠ½Π½ΡΡ ΠΏΠ΅ΡΠ΅Π³ΠΎΡΠΎΠ΄ΠΎΠΊ.
ΠΠ΅ΡΠ΅Π΄ ΡΡΠ΅ΠΊΠ»ΡΠ½Π½ΠΎΠΉ ΠΏΠ΅ΡΠ΅Π³ΠΎΡΠΎΠ΄ΠΊΠΎΠΉ ΠΌΠΎΠΆΠ½ΠΎ ΠΎΠ±ΠΎΡΡΠ΄ΠΎΠ²Π°ΡΡ Π³ΠΎΡΡΠΈΠ½ΡΡ Π·ΠΎΠ½Ρ Ρ Π΄Π²ΡΠΌΡ ΠΌΡΠ³ΠΊΠΈΠΌΠΈ ΠΊΡΠ΅ΡΠ»Π°ΠΌΠΈ ΠΈ ΡΡΠ΅ΠΊΠ»ΡΠ½Π½ΡΠΌ ΡΡΠΎΠ»ΠΈΠΊΠΎΠΌ Π΄Π»Ρ Π½ΠΎΡΡΠ±ΡΠΊΠ° ΠΈΠ»ΠΈ ΡΠ΅Π»Π΅Π²ΠΈΠ·ΠΎΡΠ°.
ΠΠ° Π³ΠΎΡΡΠΈΠ½ΠΎΠΉ Π·ΠΎΠ½ΠΎΠΉ Π½Π°ΠΉΠ΄Π΅Ρ ΡΠ²ΠΎΠ΅ ΠΌΠ΅ΡΡΠΎ Π½Π΅Π±ΠΎΠ»ΡΡΠ°Ρ ΠΊΡΡ Π½Ρ Ρ ΠΎΠ±Π΅Π΄Π΅Π½Π½ΡΠΌ ΡΡΠΎΠ»ΠΎΠΌ ΠΈ ΡΡΡΠ»ΡΡΠΌΠΈ.
Π‘Π°Π½ΡΠ·Π΅Π» ΠΌΠΎΠΆΠ½ΠΎ ΠΎΠ±ΠΎΡΡΠ΄ΠΎΠ²Π°ΡΡ ΠΏΠΎ ΠΏΡΠ°Π²ΡΡ ΠΈΠ»ΠΈ Π»Π΅Π²ΡΡ ΡΡΠΎΡΠΎΠ½Ρ ΠΎΡ ΠΊΡΡ Π½ΠΈ.
Π Π°ΡΡΡΠ°Π½ΠΎΠ²ΠΊΠ° ΠΌΠ΅Π±Π΅Π»ΠΈ
Π ΠΊΠ²Π°ΡΡΠΈΡΠ°Ρ -ΡΡΡΠ΄ΠΈΡΡ ΡΠ°ΡΡΡΠ°Π½ΠΎΠ²ΠΊΠ° ΠΌΠ΅Π±Π΅Π»ΠΈ ΠΏΡΠΎΠΈΡΡ ΠΎΠ΄ΠΈΡ ΠΈΠ½Π°ΡΠ΅, ΡΠ΅ΠΌ Π² ΠΆΠΈΠ»ΠΈΡΠ°Ρ ΡΠΎ ΡΡΠ°Π½Π΄Π°ΡΡΠ½ΠΎΠΉ ΠΏΠ»Π°Π½ΠΈΡΠΎΠ²ΠΊΠΎΠΉ.
ΠΡΡ Π½Ρ-Π³ΠΎΡΡΠΈΠ½Π°Ρ
Π ΠΎΠ±ΡΡΠ½ΠΎΠΉ ΠΊΠ²Π°ΡΡΠΈΡΠ΅ ΠΊΡΡ Π½Ρ ΠΈ Π³ΠΎΡΡΠΈΠ½Π°Ρ ΠΌΠΎΠ³ΡΡ ΡΠΈΠ»ΡΠ½ΠΎ ΠΎΡΠ»ΠΈΡΠ°ΡΡΡΡ Π΄ΡΡΠ³ ΠΎΡ Π΄ΡΡΠ³Π° ΠΏΠΎ ΡΡΠΈΠ»Ρ ΠΈ ΠΈΡΠΏΠΎΠ»Π½Π΅Π½ΠΈΡ. ΠΠΎ Π² ΡΠ»ΡΡΠ°Π΅ Ρ ΡΠΎΠ²ΡΠ΅ΠΌΠ΅Π½Π½ΠΎΠΉ ΡΡΡΠ΄ΠΈΠ΅ΠΉ ΡΠ»Π΅Π΄ΡΠ΅Ρ ΠΏΡΠΈΠ΄Π΅ΡΠΆΠΈΠ²Π°ΡΡΡΡ ΠΎΠ΄Π½ΠΎΠΉ ΡΡΠΈΠ»ΠΈΡΡΠΈΠΊΠΈ Π² ΠΎΡΠΎΡΠΌΠ»Π΅Π½ΠΈΠΈ ΡΡΠΈΡ ΡΡΠ½ΠΊΡΠΈΠΎΠ½Π°Π»ΡΠ½ΡΡ Π·ΠΎΠ½.
ΠΠ°ΠΊ ΠΏΡΠ°Π²ΠΈΠ»ΠΎ, Π³ΠΎΡΡΠΈΠ½Π°Ρ Π·ΠΎΠ½Π° ΠΎΠ±ΡΡΠ°Π²ΡΠ»Π΅ΡΡΡ Π΄ΠΈΠ²Π°Π½ΠΎΠΌ ΠΈΠ»ΠΈ ΠΊΡΠ΅ΡΠ»Π°ΠΌΠΈ, Π΄ΠΎΠΏΠΎΠ»Π½Π΅Π½Π½ΡΠΌΠΈ Π½Π΅Π±ΠΎΠ»ΡΡΠΈΠΌ ΠΆΡΡΠ½Π°Π»ΡΠ½ΡΠΌ ΠΈΠ»ΠΈ ΠΊΠΎΡΠ΅ΠΉΠ½ΡΠΌ ΡΡΠΎΠ»ΠΈΠΊΠΎΠΌ ΠΈ ΡΠ΅Π»Π΅Π²ΠΈΠ·ΠΎΡΠΎΠΌ. Π Π°ΡΠΏΠΎΠ»ΠΎΠΆΠΈΡΡ ΡΡΠΈ ΠΎΠ±ΡΠ΅ΠΊΡΡ ΠΌΠΎΠΆΠ½ΠΎ ΡΡΠ°Π·Ρ Π·Π° ΠΎΠ±Π΅Π΄Π΅Π½Π½ΡΠΌ ΡΡΠΎΠ»ΠΎΠΌ ΡΠΎ ΡΡΡΠ»ΡΡΠΌΠΈ (Π΅ΡΠ»ΠΈ ΡΠ°ΠΊΠΎΠ²ΡΠ΅ ΠΈΠΌΠ΅ΡΡΡΡ), Π±Π°ΡΠ½ΠΎΠΉ Π·ΠΎΠ½ΠΎΠΉ ΠΈΠ»ΠΈ ΠΊΡΡ ΠΎΠ½Π½ΡΠΌ Π³Π°ΡΠ½ΠΈΡΡΡΠΎΠΌ.
ΠΠ΅ ΡΠ΅ΠΊΠΎΠΌΠ΅Π½Π΄ΡΠ΅ΡΡΡ Π²ΡΠ±ΠΈΡΠ°ΡΡ ΠΌΡΠ³ΠΊΠΈΠΉ ΡΠ³ΠΎΠ»ΠΎΠΊ, ΡΠ΅Π·ΠΊΠΎ ΠΊΠΎΠ½ΡΡΠ°ΡΡΠΈΡΡΡΡΠΈΠΉ Ρ ΠΊΡΡ ΠΎΠ½Π½ΠΎΠΉ ΠΌΠ΅Π±Π΅Π»ΡΡ. Π’Π°ΠΊΠΎΠ΅ ΡΠΎΡΠ΅ΡΠ°Π½ΠΈΠ΅ Π±ΡΠ΄Π΅Ρ ΡΠΌΠΎΡΡΠ΅ΡΡΡΡ Π½Π΅Π³Π°ΡΠΌΠΎΠ½ΠΈΡΠ½ΠΎ.
Π‘Π»Π΅Π΄ΡΠ΅Ρ ΠΏΠΎΠΈΠ³ΡΠ°ΡΡ Ρ ΡΠ²Π΅ΡΠ°ΠΌΠΈ, ΡΡΠΎΠ±Ρ ΠΊΡΡ Π½Ρ ΠΈ Π³ΠΎΡΡΠΈΠ½Π°Ρ Π³Π°ΡΠΌΠΎΠ½ΠΈΡΠΎΠ²Π°Π»ΠΈ Π΄ΡΡΠ³ Ρ Π΄ΡΡΠ³ΠΎΠΌ. ΠΠ°ΠΏΡΠΈΠΌΠ΅Ρ, ΠΊ ΠΊΡΡ ΠΎΠ½Π½ΠΎΠΌΡ Π³Π°ΡΠ½ΠΈΡΡΡΡ ΡΠΎ ΡΠ²Π΅ΡΠ»ΡΠΌΠΈ ΡΡΠΎΠ»Π΅ΡΠ½ΠΈΡΠ°ΠΌΠΈ ΡΡΠΎΠΈΡ ΠΏΠΎΠ΄ΠΎΠ±ΡΠ°ΡΡ Π΄ΠΈΠ²Π°Π½ ΠΊΡΠ΅ΠΌΠΎΠ²ΠΎΠ³ΠΎ ΠΈΠ»ΠΈ Π±Π΅ΠΆΠ΅Π²ΠΎΠ³ΠΎ ΡΠ²Π΅ΡΠ°.
ΠΡΠΈΠ²Π»Π΅ΠΊΠ°ΡΠ΅Π»ΡΠ½ΠΎ ΡΠΌΠΎΡΡΠΈΡΡΡ ΠΏΠ»Π°Π½ΠΈΡΠΎΠ²ΠΊΠ°, ΠΏΡΠΈ ΠΊΠΎΡΠΎΡΠΎΠΉ ΠΌΠ΅Π±Π΅Π»Ρ, ΠΎΡΠ½ΠΎΡΡΡΠ°ΡΡΡ ΠΊ Π³ΠΎΡΡΠΈΠ½ΠΎΠΉ, ΡΠ°ΡΠΏΠΎΠ»Π°Π³Π°Π΅ΡΡΡ Ρ ΡΡΠ΅Π½Ρ ΠΏΠΎ ΠΏΡΠ°Π²ΡΡ ΠΈΠ»ΠΈ Π»Π΅Π²ΡΡ ΡΡΠΎΡΠΎΠ½Ρ ΠΎΡ ΠΊΡΡ Π½ΠΈ. ΠΡΠΈ ΠΏΠΎΠ΄ΠΎΠ±Π½ΠΎΠΌ ΠΈΡΠΏΠΎΠ»Π½Π΅Π½ΠΈΠΈ ΠΏΠΎΠΌΠ΅ΡΠ΅Π½ΠΈΠ΅ Π²ΠΈΠ·ΡΠ°Π»ΡΠ½ΠΎ ΠΊΠ°ΠΆΠ΅ΡΡΡ Π±ΠΎΠ»Π΅Π΅ ΠΏΡΠΎΡΡΠΎΡΠ½ΡΠΌ.
ΠΠ°Π½Π½Π°Ρ
ΠΠ»Ρ ΡΠ°Π½ΡΠ·Π»Π° Π² ΠΊΠ²Π°ΡΡΠΈΡΠ°Ρ -ΡΡΡΠ΄ΠΈΡΡ ΠΎΡΠ²ΠΎΠ΄ΠΈΡΡΡ ΠΌΠ°Π»Π΅Π½ΡΠΊΠΎΠ΅ ΠΏΠΎΠΌΠ΅ΡΠ΅Π½ΠΈΠ΅. ΠΠ΄Π΅Π°Π»ΡΠ½ΡΠΌΠΈ Π²Π°ΡΠΈΠ°Π½ΡΠ°ΠΌΠΈ Π΄Π»Ρ ΡΠ°ΠΊΠΎΠΉ ΠΏΠ»ΠΎΡΠ°Π΄ΠΈ ΡΡΠ°Π½ΡΡ Π΄ΡΡΠ΅Π²Π°Ρ ΠΊΠ°Π±ΠΈΠ½Π°, Π½Π΅Π±ΠΎΠ»ΡΡΠΎΠΉ ΡΠ½ΠΈΡΠ°Π· ΠΈ ΡΠ°ΠΊΠΎΠ²ΠΈΠ½Π° Π½Π° ΡΠ·ΠΊΠΎΠΉ ΡΡΠΎΠΉΠΊΠ΅.
ΠΡΠ»ΠΈ ΠΏΠ»ΠΎΡΠ°Π΄Ρ ΠΏΠΎΠ·Π²ΠΎΠ»ΡΠ΅Ρ, ΡΠΎ Π²ΠΌΠ΅ΡΡΠΎ Π΄ΡΡΠ΅Π²ΠΎΠΉ ΠΊΠ°Π±ΠΈΠ½Ρ ΠΌΠΎΠΆΠ½ΠΎ ΠΏΠΎΡΡΠ°Π²ΠΈΡΡ Π³ΠΎΡΠΈΠ·ΠΎΠ½ΡΠ°Π»ΡΠ½ΡΡ Π²Π°Π½Π½ΡΡ. ΠΡΠ΅ Π΄Π΅ΡΠ°Π»ΠΈ ΠΌΠΎΠΆΠ½ΠΎ ΡΠ°Π·ΠΌΠ΅ΡΡΠΈΡΡ Π²Π΄ΠΎΠ»Ρ ΡΡΠ΅Π½. ΠΠ°ΠΏΡΠΈΠΌΠ΅Ρ, Ρ ΠΎΠ΄Π½ΠΎΠΉ ΡΡΠΎΡΠΎΠ½Ρ ΠΏΠΎΡΡΠ°Π²ΠΈΡΡ Π²Π°Π½Π½ΡΡ, Π° Π½Π°ΠΏΡΠΎΡΠΈΠ² Π½Π΅Π΅ ΡΠ½ΠΈΡΠ°Π·. Π Π°ΠΊΠΎΠ²ΠΈΠ½Π° Π±ΡΠ΄Π΅Ρ Π³Π°ΡΠΌΠΎΠ½ΠΈΡΠ½ΠΎ ΡΠΌΠΎΡΡΠ΅ΡΡΡΡ Ρ ΡΠ΅Π½ΡΡΠ°Π»ΡΠ½ΠΎΠΉ ΡΡΠ΅Π½Ρ.
ΠΡΠΈΡ ΠΎΠΆΠ°Ρ
Π§Π°ΡΠ΅ Π² ΡΡΡΠ΄ΠΈΡΡ ΠΈΠΌΠ΅ΡΡΡΡ Π½Π΅Π±ΠΎΠ»ΡΡΠΈΠ΅ ΠΏΡΠΈΡ ΠΎΠΆΠΈΠ΅, ΠΊΠΎΡΠΎΡΡΠ΅ ΠΏΠ΅ΡΠ΅Ρ ΠΎΠ΄ΡΡ Π² Π·ΠΎΠ½Ρ ΠΊΡΡ Π½ΠΈ ΠΈ Π³ΠΎΡΡΠΈΠ½ΠΎΠΉ. ΠΠ° ΡΠ°ΠΊΠΎΠΉ ΠΏΠ»ΠΎΡΠ°Π΄ΠΈ ΠΌΠΎΠΆΠ½ΠΎ ΡΠΌΠ΅ΡΡΠΈΡΡ Π½Π΅Π±ΠΎΠ»ΡΡΡΡ ΡΡΠΌΠ±Ρ ΠΈ Π²ΡΡΡΠ°ΠΈΠ²Π°Π΅ΠΌΡΠΉ Π² ΡΡΠ΅Π½Ρ ΡΠΊΠ°Ρ-ΠΊΡΠΏΠ΅.
ΠΠ΅ΡΠ΅Π΄ΠΊΠΎ Π»ΡΠ΄ΠΈ ΠΎΡΠΊΠ°Π·ΡΠ²Π°ΡΡ ΠΎΡ ΠΊΠΎΡΠΏΡΡΠ½ΠΎΠΉ ΠΈΠ»ΠΈ Π²ΡΡΡΠ°ΠΈΠ²Π°Π΅ΠΌΠΎΠΉ ΠΌΠ΅Π±Π΅Π»ΠΈ Π² ΠΏΠΎΠ»ΡΠ·Ρ Π½Π°ΡΡΠ΅Π½Π½ΡΡ Π²Π΅ΡΠ°Π»ΠΎΠΊ ΠΈ ΠΊΡΡΡΠΊΠΎΠ². Π’Π°ΠΊΠΈΠ΅ Π΄Π΅ΡΠ°Π»ΠΈ Π·Π°Π½ΠΈΠΌΠ°ΡΡ ΠΌΠΈΠ½ΠΈΠΌΡΠΌ ΠΏΡΠΎΡΡΡΠ°Π½ΡΡΠ²Π°.
ΠΠ΅ ΡΠ΅ΠΊΠΎΠΌΠ΅Π½Π΄ΡΠ΅ΡΡΡ ΠΏΠ΅ΡΠ΅Π³ΡΡΠΆΠ°ΡΡ ΠΏΡΠΈΡ ΠΎΠΆΡΡ Π±ΠΎΠ»ΡΡΠΈΠΌ ΠΊΠΎΠ»ΠΈΡΠ΅ΡΡΠ²ΠΎΠΌ ΠΌΠ΅Π±Π΅Π»ΠΈ, ΠΎΡΠΎΠ±Π΅Π½Π½ΠΎ, Π΅ΡΠ»ΠΈ ΠΎΠ½Π° ΠΈΠΌΠ΅Π΅Ρ ΡΠ΅ΠΌΠ½ΡΠ΅ ΠΎΡΡΠ΅Π½ΠΊΠΈ. ΠΠΎΠ΄ΠΎΠ±Π½ΠΎΠ΅ ΡΠ΅ΡΠ΅Π½ΠΈΠ΅ Π²ΠΈΠ·ΡΠ°Π»ΡΠ½ΠΎ ΠΌΠΎΠΆΠ΅Ρ ΡΠΌΠ΅Π½ΡΡΠΈΡΡ ΠΈ Π·Π°ΡΠ΅ΠΌΠ½ΠΈΡΡ ΠΏΡΠΈΡ ΠΎΠΆΡΡ.
ΠΠ°ΡΠΈΠ°Π½ΡΡ Π·ΠΎΠ½ΠΈΡΠΎΠ²Π°Π½ΠΈΡ
ΠΠ°ΠΆΠ΅ Π΅ΡΠ»ΠΈ Π²Π°ΡΠ° ΠΊΠ²Π°ΡΡΠΈΡΠ°-ΡΡΡΠ΄ΠΈΡ ΠΈΠΌΠ΅Π΅Ρ Π½Π΅Π±ΠΎΠ»ΡΡΡΡ ΠΏΠ»ΠΎΡΠ°Π΄Ρ, ΡΠΎ Π΅Π΅ ΠΌΠΎΠΆΠ½ΠΎ ΠΎΠ±ΡΠ³ΡΠ°ΡΡ ΡΠ°ΠΊ, ΡΡΠΎ ΠΎΠ½Π° Π±ΡΠ΄Π΅Ρ Π²ΡΠ³Π»ΡΠ΄Π΅ΡΡ ΠΏΡΠΎΡΡΠΎΡΠ½ΠΎΠΉ. ΠΠ»Ρ ΡΡΠΎΠ³ΠΎ Π½Π΅ΠΎΠ±Ρ ΠΎΠ΄ΠΈΠΌΠΎ Π³ΡΠ°ΠΌΠΎΡΠ½ΠΎ ΡΠ°Π·Π΄Π΅Π»ΠΈΡΡ ΠΏΠΎΠΌΠ΅ΡΠ΅Π½ΠΈΠ΅ Π½Π° Π·ΠΎΠ½Ρ ΠΈ ΠΏΠΎΠ΄ΠΎΠ±ΡΠ°ΡΡ ΠΏΠΎΠ΄Ρ ΠΎΠ΄ΡΡΡΡ ΠΌΠ΅Π±Π΅Π»Ρ.
Π Π°ΡΡΠΌΠΎΡΡΠΈΠΌ ΠΏΠΎΠ΄ΡΠΎΠ±Π½Π΅Π΅ Π½Π΅ΡΠΊΠΎΠ»ΡΠΊΠΎ Π²Π°ΡΠΈΠ°Π½ΡΠΎΠ² Π·ΠΎΠ½ΠΈΡΠΎΠ²Π°Π½ΠΈΡ ΡΡΡΠ΄ΠΈΠΈ:
- Π Π°Π·Π΄Π΅Π»ΠΈΡΡ ΡΠ²ΠΎΠ±ΠΎΠ΄Π½ΡΡ ΠΏΠ»ΠΎΡΠ°Π΄Ρ Π½Π° Π·ΠΎΠ½Ρ ΠΌΠΎΠΆΠ½ΠΎ Ρ ΠΏΠΎΠΌΠΎΡΡΡ ΠΏΡΠ°Π²ΠΈΠ»ΡΠ½ΠΎ ΡΠ°ΡΡΡΠ°Π²Π»Π΅Π½Π½ΡΡ ΠΏΡΠ΅Π΄ΠΌΠ΅ΡΠΎΠ² ΠΌΠ΅Π±Π΅Π»ΠΈ. ΠΠ°ΠΏΡΠΈΠΌΠ΅Ρ, Π΄Π»Ρ ΡΠ°Π·Π³ΡΠ°Π½ΠΈΡΠ΅Π½ΠΈΡ ΠΊΡΡ Π½ΠΈ ΠΈ Π³ΠΎΡΡΠΈΠ½ΠΎΠΉ ΠΌΠΎΠΆΠ½ΠΎ ΠΏΠΎΠ΄ΠΎΠ±ΡΠ°ΡΡ Π±Π°ΡΠ½ΡΡ ΡΡΠΎΠΉΠΊΡ.
- ΠΡΠ΅ ΠΎΠ΄Π½ΠΈΠΌ Π²Π°ΡΠΈΠ°Π½ΡΠΎΠΌ Π΄Π»Ρ ΡΠ°Π·Π³ΡΠ°Π½ΠΈΡΠ΅Π½ΠΈΡ ΠΏΡΠΎΡΡΡΠ°Π½ΡΡΠ²Π° ΡΠ²Π»ΡΡΡΡΡ ΡΠΈΡΠΌΡ. ΠΠ΅ ΡΡΠΎΠΈΡ Π΄ΡΠΌΠ°ΡΡ, ΡΡΠΎ ΠΏΠ΅ΡΠ΅Π½ΠΎΡΠ½ΡΠ΅ ΠΌΠΎΠ΄Π΅Π»ΠΈ Π²ΡΠ³Π»ΡΠ΄ΡΡ ΡΡΠ°ΡΠΎΠΌΠΎΠ΄Π½ΠΎ. Π‘Π΅Π³ΠΎΠ΄Π½Ρ ΠΏΡΠΎΠ΄Π°ΡΡΡΡ ΡΠ°Π·Π½ΡΠ΅ ΡΠΈΡΠΌΡ, ΠΊΠΎΡΠΎΡΡΠ΅ ΠΈΠ·Π³ΠΎΡΠ°Π²Π»ΠΈΠ²Π°ΡΡΡΡ ΠΈΠ· Π΄Π΅ΡΠ΅Π²Π°, Π±Π°ΠΌΠ±ΡΠΊΠ°, ΠΏΠ»Π°ΡΡΠΈΠΊΠ° ΠΈ ΠΌΠ΅ΡΠ°Π»Π»Π°. ΠΡΠΈΠ³ΠΈΠ½Π°Π»ΡΠ½ΠΎ Π²ΡΠ³Π»ΡΠ΄ΡΡ ΠΈΠ·Π΄Π΅Π»ΠΈΡ ΡΠΎ ΡΡΠ΅ΠΊΠ»ΡΠ½Π½ΡΠΌΠΈ ΠΈ Π·Π΅ΡΠΊΠ°Π»ΡΠ½ΡΠΌΠΈ Π²ΡΡΠ°Π²ΠΊΠ°ΠΌΠΈ. Π’Π°ΠΊΠΈΠ΅ ΠΏΡΠΈΡΠΏΠΎΡΠΎΠ±Π»Π΅Π½ΠΈΡ ΠΌΠΎΠ³ΡΡ ΠΈΠΌΠ΅ΡΡ ΡΠ°Π·Π½ΡΡ ΡΠΎΡΠΌΡ. Π Π°ΡΠΏΡΠΎΡΡΡΠ°Π½Π΅Π½Π½ΡΠΌΠΈ ΡΠ²Π»ΡΡΡΡΡ ΡΠΊΠ·Π΅ΠΌΠΏΠ»ΡΡΡ Π² Π²ΠΈΠ΄Π΅ ΡΡΡΠΏΠ΅Π½Π΅ΠΉ ΠΈΠ»ΠΈ ΠΊΠΎΡΠΎΠ±Π°.
- Π‘Π»ΠΎΠΆΠ½ΡΠΌ ΡΠ΅ΡΠ΅Π½ΠΈΠ΅ΠΌ Π΄Π»Ρ ΡΠ°Π·Π΄Π΅Π»Π΅Π½ΠΈΡ Π·ΠΎΠ½ ΠΌΠΎΠΆΠ΅Ρ ΡΡΠ°ΡΡ Π°ΠΊΠ²Π°ΡΠΈΡΠΌ. ΠΠ½ Π΄ΠΎΠ»ΠΆΠ΅Π½ ΠΈΠΌΠ΅ΡΡ Π±ΠΎΠ»ΡΡΠΎΠΉ ΡΠ°Π·ΠΌΠ΅Ρ ΠΈ ΡΡΠΎΡΡΡ Π½Π° ΡΠΏΠ΅ΡΠΈΠ°Π»ΡΠ½ΠΎΠΉ ΡΡΠΌΠ±Π΅. ΠΠ°Π»Π΅Π½ΡΠΊΠΈΠΉ Π°ΠΊΠ²Π°ΡΠΈΡΠΌ ΠΊΡΡΠ³Π»ΠΎΠΉ ΡΠΎΡΠΌΡ Π΄Π»Ρ ΡΡΠΎΠ³ΠΎ Π½Π΅ ΠΏΠΎΠ΄ΠΎΠΉΠ΄Π΅Ρ.
- ΠΠ»Ρ ΠΎΡΠ΄Π΅Π»Π΅Π½ΠΈΡ ΡΠΏΠ°Π»ΡΠ½ΠΈ ΠΈΠ»ΠΈ ΡΠ°Π±ΠΎΡΠ΅Π³ΠΎ ΠΊΠ°Π±ΠΈΠ½Π΅ΡΠ° ΠΌΠΎΠΆΠ½ΠΎ ΠΏΡΠΈΠΎΠ±ΡΠ΅ΡΡΠΈ ΡΡΠ΅Π»Π»Π°ΠΆΠΈ. Π£Π΄Π°ΡΠ½ΡΠΌΠΈ Π²Π°ΡΠΈΠ°Π½ΡΠ°ΠΌΠΈ Π² ΡΠ²Π»ΡΡΡΡΡ ΠΎΡΠΊΡΡΡΡΠ΅ ΡΠΊΠ·Π΅ΠΌΠΏΠ»ΡΡΡ. ΠΠ½ΠΈ ΠΎΡΠ»ΠΈΡΠ½ΠΎ ΠΏΡΠΎΠΏΡΡΠΊΠ°ΡΡ ΡΠ²Π΅Ρ, ΠΏΠΎΡΡΠΎΠΌΡ Π² ΠΎΠ³ΠΎΡΠΎΠΆΠ΅Π½Π½ΠΎΠΉ Π·ΠΎΠ½Π΅ Π½Π΅ Π±ΡΠ΄Π΅Ρ ΡΠ΅ΠΌΠ½ΠΎ. Π‘Π΅Π³ΠΎΠ΄Π½Ρ ΠΌΠΎΠΆΠ½ΠΎ Π·Π°ΠΊΠ°Π·Π°ΡΡ ΡΡΠ΅Π»Π»Π°ΠΆΠΈ ΠΏΠΎ Π²Π°ΡΠΈΠΌ ΠΌΠ΅ΡΠΊΠ°ΠΌ. Π’Π°ΠΊΠΈΠ΅ Π²Π΅ΡΠΈ Π±ΡΠ΄ΡΡ ΡΡΠΎΠΈΡΡ Π΄ΠΎΡΠΎΠΆΠ΅, Π½ΠΎ Π·Π°ΡΠΎ Π²Ρ Π±Π΅Π· ΡΡΡΠ΄Π° ΡΠΌΠΎΠΆΠ΅ΡΠ΅ Π΄ΠΎΠ±ΠΈΡΡΡΡ ΠΆΠ΅Π»Π°Π΅ΠΌΠΎΠ³ΠΎ ΡΡΡΠ΅ΠΊΡΠ° Π² ΠΈΠ½ΡΠ΅ΡΡΠ΅ΡΠ΅.
- ΠΠ½ΠΎΠ³ΠΈΠ΅ Π²Π»Π°Π΄Π΅Π»ΡΡΡ ΠΊΠ²Π°ΡΡΠΈΡ-ΡΡΡΠ΄ΠΈΠΉ ΡΠ°Π·Π΄Π΅Π»ΡΡΡ Π·ΠΎΠ½Ρ ΠΏΡΠΈ ΠΏΠΎΠΌΠΎΡΠΈ ΡΠΊΠ°ΡΠΎΠ². Π’Π°ΠΊΠΎΠΉ ΡΠΏΠΎΡΠΎΠ± ΡΠ²Π»ΡΠ΅ΡΡΡ ΠΏΡΠ°ΠΊΡΠΈΡΠ½ΡΠΌ ΠΈ ΡΡΠ½ΠΊΡΠΈΠΎΠ½Π°Π»ΡΠ½ΡΠΌ. ΠΠ°ΠΌ Π½Π΅ ΠΏΡΠΈΠ΄Π΅ΡΡΡ ΠΏΠΎΠΊΡΠΏΠ°ΡΡ Π΄ΠΎΠΏΠΎΠ»Π½ΠΈΡΠ΅Π»ΡΠ½ΡΡ ΠΌΠ΅Π±Π΅Π»Ρ Ρ ΡΠ°ΠΊΠΈΠΌΠΈ Π΄Π΅ΡΠ°Π»ΡΠΌΠΈ. ΠΠΎΠΆΠ½ΠΎ ΠΎΠΊΠ»Π΅ΠΈΡΡ Π·Π°Π΄Π½ΠΈΠ΅ ΡΡΠ΅Π½ΠΊΠΈ ΡΠΊΠ°ΡΠΎΠ² ΠΊΡΠ°ΡΠΈΠ²ΡΠΌΠΈ ΡΠΎΡΠΎΠΎΠ±ΠΎΡΠΌΠΈ ΠΈ ΠΏΠΎΠ΄ΠΎΠ΄Π²ΠΈΠ½ΡΡΡ ΠΊ Π½ΠΈΠΌ Π½Π΅Π±ΠΎΠ»ΡΡΠΎΠΉ Π΄ΠΈΠ²Π°Π½ — Ρ Π²Π°Ρ ΠΏΠΎΠ»ΡΡΠΈΡΡΡ ΡΡΡΠ½Π°Ρ Π·ΠΎΠ½Π° ΠΎΡΠ΄ΡΡ Π°. ΠΠ»Ρ ΡΠ°Π·Π΄Π΅Π»Π΅Π½ΠΈΡ Π·ΠΎΠ½ Π½Π΅ ΠΎΠ±ΡΠ·Π°ΡΠ΅Π»ΡΠ½ΠΎ ΠΏΠΎΠ΄Π±ΠΈΡΠ°ΡΡ Π²ΡΡΠΎΠΊΠΈΠ΅ ΠΌΠΎΠ΄Π΅Π»ΠΈ ΡΠΊΠ°ΡΠΎΠ². ΠΠΏΠΎΠ»Π½Π΅ ΠΏΠΎΠ΄ΠΎΠΉΠ΄Π΅Ρ Π½Π΅Π±ΠΎΠ»ΡΡΠ°Ρ ΡΡΠΌΠ±Π°, Π½Π° ΠΊΠΎΡΠΎΡΡΡ ΠΌΠΎΠΆΠ½ΠΎ ΠΏΠΎΡΡΠ°Π²ΠΈΡΡ ΡΠΈΡΠΎΠΊΠΈΠΉ ΡΠ΅Π»Π΅Π²ΠΈΠ·ΠΎΡ, Π»Π°ΠΌΠΏΡ ΠΈΠ»ΠΈ ΡΠ²Π΅ΡΡ Π² Π³ΠΎΡΡΠΊΠ°Ρ .
- ΠΡΠ»ΠΈΡΠ½ΡΠΌ ΡΠ΅ΡΠ΅Π½ΠΈΠ΅ΠΌ Π΄Π»Ρ ΡΠ°Π·Π΄Π΅Π»Π΅Π½ΠΈΡ ΡΡΡΠ΄ΠΈΠΈ ΡΠ²Π»ΡΡΡΡΡ ΡΠ°Π·Π΄Π²ΠΈΠΆΠ½ΡΠ΅ ΠΏΠ΅ΡΠ΅Π³ΠΎΡΠΎΠ΄ΠΊΠΈ. Π‘ ΠΏΠΎΠΌΠΎΡΡΡ ΡΠ°ΠΊΠΈΡ Π²Π°ΡΠΈΠ°Π½ΡΠΎΠ² Π²Ρ ΡΡΠΊΠΎΠ½ΠΎΠΌΠΈΡΠ΅ ΡΠ²ΠΎΠ±ΠΎΠ΄Π½ΠΎΠ΅ ΠΏΡΠΎΡΡΡΠ°Π½ΡΡΠ²ΠΎ. ΠΡΠΈ ΠΏΡΠ΅Π΄ΠΌΠ΅ΡΡ ΠΎΡΠΊΡΡΠ²Π°ΡΡΡΡ ΠΏΠ»Π°Π²Π½ΠΎ ΠΈ Π±Π΅Π· Π»ΠΈΡΠ½Π΅Π³ΠΎ ΡΡΠΌΠ°. Π Π½ΠΈΡ ΠΈΠΌΠ΅ΡΡΡΡ ΠΊΡΠ΅ΠΏΠ»Π΅Π½ΠΈΡ ΠΈ Π½Π°ΠΏΡΠ°Π²Π»ΡΡΡΠΈΠ΅, ΡΠΏΠΎΡΠΎΠ±Π½ΡΠ΅ ΠΊΠΎΠΌΠΏΠ΅Π½ΡΠΈΡΠΎΠ²Π°ΡΡ Π½Π΅ΡΠΎΠ²Π½ΡΠ΅ ΠΏΠΎΠ²Π΅ΡΡ Π½ΠΎΡΡΠΈ ΠΏΠΎΠ»Π°, ΡΡΠ΅Π½ ΠΈ ΠΏΠΎΡΠΎΠ»ΠΊΠ°.ΠΠΎ ΠΌΠ½ΠΎΠ³ΠΈΠ΅ ΠΈΠ½ΡΠ΅ΡΡΠ΅ΡΡ Π³Π°ΡΠΌΠΎΠ½ΠΈΡΠ½ΠΎ Π²ΠΏΠΈΡΡΡΡΡ ΠΏΡΠΎΠ·ΡΠ°ΡΠ½ΡΠ΅ Π΄Π²Π΅ΡΡΡ. ΠΡΠ»ΠΈ ΠΆΠ΅ Π² ΠΏΠ΅ΡΠ΅Π³ΠΎΡΠΎΠ΄ΠΊΠ°Ρ ΠΏΡΠΈΡΡΡΡΡΠ²ΡΡΡ Π³Π»ΡΡ ΠΈΠ΅ Π΄Π²Π΅ΡΠΈ ΡΠ΅ΠΌΠ½ΡΡ ΡΠΎΠ½ΠΎΠ², ΡΠΎ Ρ Π½ΠΈΠΌΠΈ ΡΡΠΎΠΈΡ Π±ΡΡΡ ΠΎΡΡΠΎΡΠΎΠΆΠ½ΡΠΌΠΈ, ΡΡΠΎΠ±Ρ Π½Π΅ ΠΈΡΠΏΠΎΡΡΠΈΡΡ Π²Π½Π΅ΡΠ½ΠΈΠΉ Π²ΠΈΠ΄ ΠΏΠΎΠΌΠ΅ΡΠ΅Π½ΠΈΡ.
- ΠΡΠ°ΡΠΈΠ²ΠΎ ΡΠΌΠΎΡΡΡΡΡΡ Π·ΠΎΠ½Ρ, ΡΠ°Π·Π³ΡΠ°Π½ΠΈΡΠ΅Π½Π½ΡΠ΅ ΡΡΠΎΡΠ°ΠΌΠΈ. Π’ΡΠ°Π΄ΠΈΡΠΈΠΎΠ½Π½ΡΠΉ Π·Π°Π½Π°Π²Π΅Ρ Π±ΡΠ΄Π΅Ρ Π²ΡΠ³Π»ΡΠ΄Π΅ΡΡ ΡΠ»ΠΈΡΠΊΠΎΠΌ Π½Π΅ΠΎΠ±ΡΡΠ½ΠΎ Π² ΡΠ°ΠΊΠΎΠΉ ΡΠΎΠ»ΠΈ, Π° Π²ΠΎΡ ΠΌΠΎΠ΄Π½ΡΠ΅ ΡΡΠΎΡΡ Π² ΡΠΏΠΎΠ½ΡΠΊΠΎΠΌ ΡΡΠΈΠ»Π΅ ΠΈΠ»ΠΈ Π½ΠΈΡΡΠ½ΡΠ΅ Π²Π°ΡΠΈΠ°Π½ΡΡ Π±ΡΠ΄ΡΡ ΡΡΡΠ΅ΠΊΡΠ½ΠΎ Π²ΠΏΠΈΡΡΠ²Π°ΡΡΡΡ Π² ΠΈΠ½ΡΠ΅ΡΡΠ΅Ρ.
- ΠΡΠ»ΠΈ Π²Ρ Π½Π΅ Ρ ΠΎΡΠΈΡΠ΅ ΠΏΠ΅ΡΠ΅ΠΊΡΡΠ²Π°ΡΡ ΠΏΡΠΎΡΡΡΠ°Π½ΡΡΠ²ΠΎ Π΄ΠΎΠΏΠΎΠ»Π½ΠΈΡΠ΅Π»ΡΠ½ΡΠΌΠΈ ΡΠ»Π΅ΠΌΠ΅Π½ΡΠ°ΠΌΠΈ, ΡΠΎ ΠΌΠΎΠΆΠ½ΠΎ ΠΎΠ±ΡΠ°ΡΠΈΡΡΡΡ ΠΊ Π½Π΅Π½Π°Π²ΡΠ·ΡΠΈΠ²ΠΎΠΌΡ Π²Π°ΡΠΈΠ°Π½ΡΡ ΡΠ°Π·Π΄Π΅Π»Π΅Π½ΠΈΡ β ΡΠ°Π·Π½ΡΠΌ Π½Π°ΠΏΠΎΠ»ΡΠ½ΡΠΌ ΠΏΠΎΠΊΡΡΡΠΈΡΠΌ. ΠΠ°ΠΏΡΠΈΠΌΠ΅Ρ, Π½Π° ΠΊΡΡ Π½Π΅ ΠΌΠΎΠΆΠ½ΠΎ ΠΏΠΎΠ»ΠΎΠΆΠΈΡΡ ΠΏΠ»ΠΈΡΠΊΡ, Π° Π² Π³ΠΎΡΡΠΈΠ½ΠΎΠΉ β Π»Π°ΠΌΠΈΠ½Π°Ρ.
Π‘ΡΠΈΠ»ΠΈ
ΠΠΎΠ΄Π½ΠΎ Π²ΡΠ³Π»ΡΠ΄ΡΡ ΠΊΠ²Π°ΡΡΠΈΡΡ-ΡΡΡΠ΄ΠΈΠΈ Π² ΡΡΠΈΠ»Π΅ Π»ΠΎΡΡ (Π² ΠΏΠ΅ΡΠ΅Π²ΠΎΠ΄Π΅ — ΡΠ΅ΡΠ΄Π°ΠΊ). ΠΡΠΎ Π½Π°ΠΏΡΠ°Π²Π»Π΅Π½ΠΈΠ΅ Π΄ΠΎΡΠ»ΠΎ Π΄ΠΎ Π½Π°Ρ ΠΈΠ· ΠΠΌΠ΅ΡΠΈΠΊΠΈ, Π³Π΄Π΅ Π² Π΄Π°Π»Π΅ΠΊΠΎΠΌ ΠΏΡΠΎΡΠ»ΠΎΠΌ Π΄Π»Ρ ΠΆΠΈΠ»ΡΡ ΡΠ°Π±ΠΎΡΠΈΠΌ Π·Π°Π²ΠΎΠ΄ΠΎΠ² Π²ΡΠ΄Π΅Π»ΡΠ»ΠΈΡΡ ΡΠ΅ΡΠ΄Π°ΠΊΠΈ ΠΏΡΠΎΠΈΠ·Π²ΠΎΠ΄ΡΡΠ²Π΅Π½Π½ΡΡ ΠΏΠΎΡΡΡΠΎΠ΅ΠΊ. ΠΠΎΠ½Π΅ΡΠ½ΠΎ, Π½ΠΈΠΊΠ°ΠΊΠΎΠΉ Π²Π½ΡΡΡΠ΅Π½Π½Π΅ΠΉ ΠΎΡΠ΄Π΅Π»ΠΊΠΈ ΠΈ ΠΊΡΠ°ΡΠΈΠ²ΠΎΠ³ΠΎ ΠΈΠ½ΡΠ΅ΡΡΠ΅ΡΠ° Π² ΡΠ°ΠΊΠΈΡ ΡΡΠ»ΠΎΠ²ΠΈΡΡ Π±ΡΡΡ Π½Π΅ ΠΌΠΎΠ³Π»ΠΎ. Π Π°Π±ΠΎΡΡΠ³ΠΈ ΡΠ°ΠΌΠΈ ΠΏΡΠΈΠ½ΠΎΡΠΈΠ»ΠΈ Π² ΡΡΠΈ ΠΈΠΌΠΏΡΠΎΠ²ΠΈΠ·ΠΈΡΠΎΠ²Π°Π½Π½ΡΠ΅ ΠΆΠΈΠ»ΠΈΡΠ° Π²ΡΡ Π½Π΅ΠΎΠ±Ρ ΠΎΠ΄ΠΈΠΌΡΡ ΠΌΠ΅Π±Π΅Π»Ρ.
Π§ΡΡΡ ΠΏΠΎΠ·ΠΆΠ΅ ΠΏΡΠ΅Π΄ΡΡΠ°Π²ΠΈΡΠ΅Π»Π΅ΠΉ Π±ΠΎΠ³Π΅ΠΌΡ Π·Π°ΠΈΠ½ΡΠ΅ΡΠ΅ΡΠΎΠ²Π°Π»ΠΈ Π½Π΅ΡΡΠΈΠ²ΠΈΠ°Π»ΡΠ½ΡΠ΅ ΠΈΠ½ΡΠ΅ΡΡΠ΅ΡΡ Ρ Π³ΡΡΠ±ΠΎΠ²Π°ΡΡΠΌΠΈ ΠΊΠΈΡΠΏΠΈΡΠ½ΡΠΌΠΈ ΡΡΠ΅Π½Π°ΠΌΠΈ, Π΄Π΅ΡΠ΅Π²ΡΠ½Π½ΡΠΌ ΠΏΠΎΠ»ΠΎΠΌ ΠΈ ΡΠΎΠΎΡΠ²Π΅ΡΡΡΠ²ΡΡΡΠ΅ΠΉ ΠΎΠ±ΡΡΠ°Π½ΠΎΠ²ΠΊΠΎΠΉ. Π‘ΠΏΡΡΡΡ Π½Π΅ΠΊΠΎΡΠΎΡΠΎΠ΅ Π²ΡΠ΅ΠΌΡ ΠΏΠΎΡΠ²ΠΈΠ»ΡΡ ΠΈΠ·Π²Π΅ΡΡΠ½ΡΠΉ ΡΠ΅Π³ΠΎΠ΄Π½Ρ ΡΡΠΈΠ»Ρ Π»ΠΎΡΡ, ΠΊΠΎΡΠΎΡΡΠΉ ΠΏΠΎΠ»ΡΠ·ΡΡΡΡΡ Π±ΠΎΠ»ΡΡΠΎΠΉ ΠΏΠΎΠΏΡΠ»ΡΡΠ½ΠΎΡΡΡΡ Π² ΠΌΠΈΡΠ΅.
ΠΠ»Ρ ΠΊΠ²Π°ΡΡΠΈΡΡ-ΡΡΡΠ΄ΠΈΠΈ ΠΈΠ΄Π΅Π°Π»ΡΠ½ΠΎ ΠΏΠΎΠ΄Ρ ΠΎΠ΄ΠΈΡ ΠΏΠΎΠΏΡΠ»ΡΡΠ½ΡΠΉ ΡΡΠΈΠ»Ρ β ΠΏΡΠΎΠ²Π°Π½Ρ. Π’Π°ΠΊΠΎΠ΅ Π½Π°ΠΏΡΠ°Π²Π»Π΅Π½ΠΈΠ΅ Π²ΡΠ±ΠΈΡΠ°ΡΡ Π»ΡΠ΄ΠΈ, ΠΏΡΠ΅Π΄ΠΏΠΎΡΠΈΡΠ°ΡΡΠΈΠ΅ ΡΡΠ°Π΄ΠΈΡΠΈΠΎΠ½Π½ΠΎΠ΅ ΠΎΡΠΎΡΠΌΠ»Π΅Π½ΠΈΠ΅ ΠΆΠΈΠ»ΠΈΡΠ° Ρ ΡΠ°Π·Π½ΠΎΡΠ²Π΅ΡΠ½ΡΠΌΠΈ Π·Π°Π½Π°Π²Π΅ΡΠΊΠ°ΠΌΠΈ ΠΈ ΠΌΠ½ΠΎΠΆΠ΅ΡΡΠ²ΠΎΠΌ Π΄Π΅ΠΊΠΎΡΠ°ΡΠΈΠ²Π½ΡΡ ΡΠ»Π΅ΠΌΠ΅Π½ΡΠΎΠ². ΠΠ½ ΠΎΡΠ»ΠΈΡΠ°Π΅ΡΡΡ ΠΏΡΠΎΡΡΠΎΡΠΎΠΉ ΠΈ Π½Π°Π»ΠΈΡΠΈΠ΅ΠΌ Π»Π΅Π³ΠΊΠΈΡ ΡΠ΅Π»ΡΡΠΊΠΈΡ Π½ΠΎΡΠΎΠΊ Π² ΠΏΠ»Π°Π½Π΅ Π΄Π΅ΠΊΠΎΡΠ°ΡΠΈΠ²Π½ΡΡ ΡΠΊΡΠ°ΡΠ΅Π½ΠΈΠΉ.
ΠΠ½ΡΠ΅ΡΡΠ΅Ρ Π² ΡΠ°ΠΊΠΎΠΌ ΠΊΠ»ΡΡΠ΅ Π½Π΅ ΠΎΠ±Ρ ΠΎΠ΄ΠΈΡΡΡ Π±Π΅Π· ΠΈΠ½ΡΠ΅ΡΠ΅ΡΠ½ΡΡ Π²ΡΡΠΈΠ²ΠΎΠΊ, ΡΠ·ΠΎΡΠΎΠ² ΠΈ ΡΡΡΠ΅ΠΊ. Π ΠΊΠ°ΠΆΠ΄ΠΎΠΌ ΡΠ³Π»Ρ ΠΌΠΎΠΆΠ½ΠΎ Π½Π°ΡΠΊΠ½ΡΡΡΡΡ Π½Π° ΠΎΡΠ΅ΡΠ΅Π΄Π½ΡΡ ΡΡΠΌΠ±ΠΎΡΠΊΡ, ΠΏΡΡΠΈΠΊ ΠΈΠ»ΠΈ ΠΊΠΎΠΌΠΎΠ΄.
Π‘Π°ΠΌΡΠΌ ΠΈΠ·ΡΡΠΊΠ°Π½Π½ΡΠΌ ΡΠ²Π»ΡΠ΅ΡΡΡ ΡΡΠΈΠ»Ρ Π°ΡΡ-Π΄Π΅ΠΊΠΎ. ΠΠ²Π°ΡΡΠΈΡΠ°-ΡΡΡΠ΄ΠΈΡ Π² ΡΠ°ΠΊΠΎΠΌ ΠΈΡΠΏΠΎΠ»Π½Π΅Π½ΠΈΠΈ Π±ΡΠ΄Π΅Ρ Π²ΡΠ³Π»ΡΠ΄Π΅ΡΡ ΡΡΠΈΠ»ΡΠ½ΠΎ ΠΈ ΡΠ»Π΅Π³Π°Π½ΡΠ½ΠΎ. Π₯Π°ΡΠ°ΠΊΡΠ΅ΡΠ½ΡΠΌΠΈ ΡΠ΅ΡΡΠ°ΠΌΠΈ ΡΡΠΎΠ³ΠΎ ΠΏΡΠ΅ΠΊΡΠ°ΡΠ½ΠΎΠ³ΠΎ ΡΡΠΈΠ»Ρ ΡΠ²Π»ΡΡΡΡΡ Π·Π°Π²ΠΎΡΠ°ΠΆΠΈΠ²Π°ΡΡΠΈΠ΅ ΡΠΈΡΡΠ½ΠΊΠΈ Π³Π΅ΠΎΠΌΠ΅ΡΡΠΈΡΠ΅ΡΠΊΠΎΠΉ ΡΠΎΡΠΌΡ, ΠΊΠΎΠ½ΡΡΠ°ΡΡΠ½ΡΠ΅ ΡΠΎΡΠ΅ΡΠ°Π½ΠΈΡ ΡΠ²Π΅ΡΠΎΠ², Π΄ΠΎΠΏΠΎΠ»Π½Π΅Π½Π½ΡΠ΅ ΡΠ°ΠΏΡΠΈΡΠΎΠΌ ΠΈ ΠΈΠ·ΡΠΌΡΡΠ΄ΠΎΠΌ, Π° ΡΠ°ΠΊΠΆΠ΅ Π΄ΠΎΡΠΎΠ³ΠΈΠ΅ ΠΌΠ°ΡΠ΅ΡΠΈΠ°Π»Ρ Π½Π°ΡΡΡΠ°Π»ΡΠ½ΠΎΠ³ΠΎ ΠΏΡΠΎΠΈΡΡ ΠΎΠΆΠ΄Π΅Π½ΠΈΡ.
ΠΠΈΠΊΠΎΠ³Π΄Π° Π½Π΅ Π²ΡΠΉΠ΄Π΅Ρ ΠΈΠ· ΠΌΠΎΠ΄Ρ ΡΠ°ΠΊΠΎΠΉ ΡΡΠΈΠ»Ρ, ΠΊΠ°ΠΊ ΠΊΠ»Π°ΡΡΠΈΠΊΠ°. ΠΡΠΎ Π½Π°ΠΏΡΠ°Π²Π»Π΅Π½ΠΈΠ΅ ΡΠΌΠΎΡΡΠΈΡΡΡ Π³Π°ΡΠΌΠΎΠ½ΠΈΡΠ½ΠΎ Π² ΡΡΠ»ΠΎΠ²ΠΈΡΡ ΡΡΡΠ΄ΠΈΠΈ. ΠΡΡΠ΅ΠΊΡΠ½ΠΎ Π±ΡΠ΄Π΅Ρ Π²ΡΠ³Π»ΡΠ΄Π΅ΡΡ ΡΠΏΠΎΠΊΠΎΠΉΠ½ΠΎΠ΅ ΡΠΎΡΠ΅ΡΠ°Π½ΠΈΠ΅ ΠΊΠ»Π°ΡΡΠΈΡΠ΅ΡΠΊΠΈΡ ΡΠ²Π΅ΡΠΎΠ² Π½Π° ΡΡΡΠΎΠ³ΠΈΡ ΠΏΡΠ΅Π΄ΠΌΠ΅ΡΠ°Ρ ΠΌΠ΅Π±Π΅Π»ΠΈ, ΠΎΠ±Π»Π°Π΄Π°ΡΡΠΈΡ Π»Π°ΠΊΠΎΠ½ΠΈΡΠ½ΡΠΌ Π΄ΠΈΠ·Π°ΠΉΠ½ΠΎΠΌ.
Π ΠΊΠ»Π°ΡΡΠΈΡΠ΅ΡΠΊΠΈΠΉ ΠΈΠ½ΡΠ΅ΡΡΠ΅Ρ Π²ΠΏΠΈΡΡΠ²Π°ΡΡΡΡ ΡΠΊΠ°ΡΡ ΠΈ Π΄ΡΡΠ³ΠΈΠ΅ ΠΏΡΠ΅Π΄ΠΌΠ΅ΡΡ ΠΌΠ΅Π±Π΅Π»ΠΈ, ΠΈΠ·Π³ΠΎΡΠΎΠ²Π»Π΅Π½Π½ΡΠ΅ ΠΈΠ· Π½Π°ΡΡΡΠ°Π»ΡΠ½ΠΎΠ³ΠΎ Π΄Π΅ΡΠ΅Π²Π°. Π’Π°ΠΊΠΈΠ΅ ΡΠΊΠ·Π΅ΠΌΠΏΠ»ΡΡΡ, ΠΎΠ±Π»Π°Π΄Π°ΡΡΠΈΠ΅ ΠΏΡΠΈΡΠΎΠ΄Π½ΡΠΌΠΈ ΡΠ°ΡΡΠ²Π΅ΡΠΊΠ°ΠΌΠΈ, ΡΠΏΠΎΡΠΎΠ±Π½Ρ ΠΏΡΠΈΠ΄Π°ΡΡ ΠΆΠΈΠ»ΠΈΡΡ Π³Π°ΡΠΌΠΎΠ½ΠΈΡΠ½ΡΠΉ Π²ΠΈΠ΄.
ΠΡΠΎΡΠΌΠ»Π΅Π½ΠΈΠ΅ ΡΡΠ΅Π½ ΠΈ ΠΏΠΎΡΠΎΠ»ΠΊΠ°
ΠΡΠ»ΠΈ Π²Π°Ρ Π΄ΠΎΠΌ ΠΏΠΎΡΡΡΠΎΠ΅Π½ ΠΈΠ· ΠΊΠΈΡΠΏΠΈΡΠ°, ΡΠΎ ΠΌΠΎΠΆΠ½ΠΎ ΠΎΡΡΠ°Π²ΠΈΡΡ Π±Π΅Π· ΠΎΡΠ΄Π΅Π»ΠΊΠΈ ΠΎΠΏΡΠ΅Π΄Π΅Π»Π΅Π½Π½ΡΠΉ ΡΡΠ°ΡΡΠΎΠΊ ΡΡΠ΅Π½Ρ. ΠΠΎΠ΄ΠΎΠ±Π½ΠΎΠ΅ ΡΠ΅ΡΠ΅Π½ΠΈΠ΅ Π±ΡΠ΄Π΅Ρ ΠΈΠ΄Π΅Π°Π»ΡΠ½ΠΎ ΡΠΌΠΎΡΡΠ΅ΡΡΡΡ Π² ΠΏΠΎΠΌΠ΅ΡΠ΅Π½ΠΈΠΈ Π² ΡΡΠΈΠ»Π΅ Π»ΠΎΡΡ. ΠΡΡΠ°Π»ΡΠ½ΡΠ΅ ΠΏΠΎΠ²Π΅ΡΡ Π½ΠΎΡΡΠΈ ΡΡΠΎΠΈΡ ΠΎΡΠ΄Π΅Π»Π°ΡΡ Π±Π΅Π»ΠΎΠΉ ΠΈΠ»ΠΈ Π±Π΅ΠΆΠ΅Π²ΠΎΠΉ ΡΡΡΠΊΠ°ΡΡΡΠΊΠΎΠΉ.
ΠΡΠ»ΠΈ Π²Ρ ΡΠ²Π»ΡΠ΅ΡΠ΅ΡΡ Π»ΡΠ±ΠΈΡΠ΅Π»Π΅ΠΌ ΠΊΠ»Π°ΡΡΠΈΠΊΠΈ, ΡΠΎ ΠΌΠΎΠΆΠ½ΠΎ ΠΎΡΠΎΡΠΌΠΈΡΡ ΡΡΠ΅Π½Ρ ΠΎΠ±ΠΎΡΠΌΠΈ Π½Π΅ΠΉΡΡΠ°Π»ΡΠ½ΡΡ ΠΈ ΡΠΏΠΎΠΊΠΎΠΉΠ½ΡΡ ΡΠ°ΡΡΠ²Π΅ΡΠΎΠΊ.
ΠΡΠ±ΠΈΡΠ΅Π»ΡΠΌ ΠΊΠΎΠ½ΡΡΠ°ΡΡΠΎΠ² ΠΏΡΠΈΠ΄ΡΡΡΡ ΠΏΠΎ Π²ΠΊΡΡΡ ΠΎΠ±ΠΎΠΈ Ρ ΠΏΡΠΈΠ½ΡΠ°ΠΌΠΈ, ΡΠΎΡΠ΅ΡΠ°ΡΡΠΈΠΌΠΈ Π² ΡΠ΅Π±Π΅ Π΄Π²Π° ΡΠ°Π·Π½ΡΡ ΡΠ²Π΅ΡΠ°.
ΠΠΎΠΆΠ½ΠΎ ΡΠΊΡΠ°ΡΠΈΡΡ ΠΏΠΎΠΌΠ΅ΡΠ΅Π½ΠΈΠ΅ Π½Π°ΡΡΠ΅Π½Π½ΡΠΌ Π΄Π΅ΠΊΠΎΡΠ°ΡΠΈΠ²Π½ΡΠΌ ΠΊΠ°ΠΌΠ½Π΅ΠΌ. ΠΡΠΈ Π΄Π΅ΡΠ°Π»ΠΈ ΡΠΏΠΎΡΠΎΠ±Π½Ρ ΡΠ΄Π΅Π»Π°ΡΡ ΠΊΠ²Π°ΡΡΠΈΡΡ Π±ΠΎΠ»Π΅Π΅ ΡΡΡΠ½ΠΎΠΉ ΠΈ ΡΡΠΈΠ»ΡΠ½ΠΎΠΉ.
ΠΠ»Ρ ΠΎΡΠΎΡΠΌΠ»Π΅Π½ΠΈΡ ΠΏΠΎΡΠΎΠ»ΠΊΠ° ΡΠ»Π΅Π΄ΡΠ΅Ρ ΠΎΠ±ΡΠ°ΡΠΈΡΡΡΡ ΠΊ Π³ΠΈΠΏΡΠΎΠΊΠ°ΡΡΠΎΠ½Ρ ΠΈΠ»ΠΈ ΡΡΡΠΊΠ°ΡΡΡΠΊΠ΅. ΠΠΎΠΆΠ½ΠΎ ΡΠΎΡΡΠ°Π²ΠΈΡΡ ΠΏΡΠΈΠ²Π»Π΅ΠΊΠ°ΡΠ΅Π»ΡΠ½ΡΠΉ ΠΌΠ½ΠΎΠ³ΠΎΡΡΠΎΠ²Π½Π΅Π²ΡΠΉ ΠΏΠΎΡΠΎΠ»ΠΎΠΊ ΠΈ Π²ΡΡΡΠΎΠΈΡΡ Π² Π½Π΅Π³ΠΎ Π½Π΅ΡΠΊΠΎΠ»ΡΠΊΠΎ ΡΠ²Π΅ΡΠΈΠ»ΡΠ½ΠΈΠΊΠΎΠ².
ΠΠΎΠΏΡΠ»ΡΡΠ½ΡΠΌΠΈ ΡΠ²Π»ΡΡΡΡΡ Π½Π°ΡΡΠΆΠ½ΡΠ΅ ΠΏΠΎΡΠΎΠ»ΠΊΠΈ. ΠΡ ΠΌΠΎΠΆΠ½ΠΎ ΠΏΠΎΠ΄ΠΎΠ±ΡΠ°ΡΡ Π² Π»ΡΠ±ΠΎΠΌ ΡΠ²Π΅ΡΠΎΠ²ΠΎΠΌ ΠΎΡΠΎΡΠΌΠ»Π΅Π½ΠΈΠΈ. ΠΠ½ΠΈ Π±ΡΠ²Π°ΡΡ ΠΎΠ΄Π½ΠΎΡΠΎΠ½Π½ΡΠΌΠΈ ΠΌΠ°ΡΠΎΠ²ΡΠΌΠΈ ΠΈΠ»ΠΈ Π³Π»ΡΠ½ΡΠ΅Π²ΡΠΌΠΈ Ρ ΠΌΠ°Π»Π΅Π½ΡΠΊΠΈΠΌΠΈ Π±Π»Π΅ΡΡΠΊΠ°ΠΌΠΈ. Π‘ ΠΏΠΎΠΌΠΎΡΡΡ ΡΠ°ΠΊΠΈΡ Π΄Π΅ΡΠ°Π»Π΅ΠΉ ΠΌΠΎΠΆΠ½ΠΎ Π²ΠΈΠ·ΡΠ°Π»ΡΠ½ΠΎ ΡΠ°ΡΡΠΈΡΠΈΡΡ ΠΏΠΎΠΌΠ΅ΡΠ΅Π½ΠΈΠ΅.
Π¦Π²Π΅Ρ
ΠΡΡΡΠ΅ Π²ΡΠ΅Π³ΠΎ ΠΊΠ²Π°ΡΡΠΈΡΡ-ΡΡΡΠ΄ΠΈΠΈ ΡΠΌΠΎΡΡΡΡΡΡ Π² ΡΠ²Π΅ΡΠ»ΡΡ ΡΠΎΠ½Π°Ρ . Π’Π°ΠΊΠΎΠ΅ ΡΠ²Π΅ΡΠΎΠ²ΠΎΠ΅ ΠΎΡΠΎΡΠΌΠ»Π΅Π½ΠΈΠ΅ Π²ΠΈΠ·ΡΠ°Π»ΡΠ½ΠΎ Π΄Π΅Π»Π°Π΅Ρ ΠΆΠΈΠ»ΠΈΡΠ΅ ΠΏΡΠΎΡΡΠΎΡΠ½ΡΠΌ ΠΈ ΡΡΡΠ½ΡΠΌ, ΠΎΡΠΎΠ±Π΅Π½Π½ΠΎ, Π΅ΡΠ»ΠΈ Π² Π½Π΅ΠΌ ΠΏΡΠΈΡΡΡΡΡΠ²ΡΡΡ ΠΏΡΠ΅Π΄ΠΌΠ΅ΡΡ ΠΌΠ΅Π±Π΅Π»ΠΈ ΠΏΠ°ΡΡΠ΅Π»ΡΠ½ΡΡ ΠΈ ΡΠΏΠΎΠΊΠΎΠΉΠ½ΡΡ ΡΠ°ΡΡΠ²Π΅ΡΠΎΠΊ.
ΠΡΠ±ΠΈΡΠ΅Π»ΠΈ Π½Π°ΡΡΡΠ΅Π½Π½ΡΡ ΡΠ²Π΅ΡΠΎΠ² ΠΌΠΎΠ³ΡΡ ΠΎΡΠ΄Π΅Π»Π°ΡΡ ΠΊΠ²Π°ΡΡΠΈΡΡ ΠΌΠ°ΡΠ΅ΡΠΈΠ°Π»Π°ΠΌΠΈ ΡΠΎΡΠ½ΡΡ ΠΈ Π½Π°ΡΡΡΠ΅Π½Π½ΡΡ ΡΠ²Π΅ΡΠΎΠ². ΠΠΎ ΡΠ°ΠΊΠΈΠ΅ ΠΎΠ±ΡΡΠ°Π½ΠΎΠ²ΠΊΠΈ Π»ΡΡΡΠ΅ Π΄ΠΎΠΏΠΎΠ»Π½ΡΡΡ ΠΌΠ΅Π±Π΅Π»ΡΡ Π½Π΅Π±ΡΠΎΡΠΊΠΈΡ ΡΠΎΠ½ΠΎΠ², ΡΡΠΎΠ±Ρ Π½Π΅ ΠΏΠΎΠ»ΡΡΠΈΠ»ΡΡ ΡΠ΅ΡΠ΅ΡΡΡΡ ΠΏΠ΅ΡΡΡΡΠΉ Π°Π½ΡΠ°ΠΌΠ±Π»Ρ.
ΠΠΎΠΆΠ½ΠΎ ΠΎΡΠΎΡΠΌΠΈΡΡ ΠΊΠ²Π°ΡΡΠΈΡΡ Π² Π±ΠΎΠ»Π΅Π΅ Π³ΡΡΠ±ΠΎΠΌ ΠΊΠ»ΡΡΠ΅. ΠΠ°ΠΏΡΠΈΠΌΠ΅Ρ, ΠΏΠΎΠ΄ΠΎΠ±ΡΠ°ΡΡ ΠΌΠ΅Π±Π΅Π»Ρ ΠΈ Π²Π½ΡΡΡΠ΅Π½Π½ΡΡ ΠΎΡΠ΄Π΅Π»ΠΊΡ Π² ΡΠ΅ΡΡΡ , ΡΠ΅ΠΌΠ½ΠΎ-ΡΠΈΠ½ΠΈΡ , ΡΠ΅ΡΠ½ΡΡ ΠΈ ΠΊΠΎΡΠΈΡΠ½Π΅Π²ΡΡ ΡΠΎΠ½Π°Ρ . Π’Π°ΠΊΠΈΠ΅ ΠΈΠ½ΡΠ΅ΡΡΠ΅ΡΡ Π²ΡΠ³Π»ΡΠ΄ΡΡ ΡΠΎΠ²ΡΠ΅ΠΌΠ΅Π½Π½ΠΎ ΠΈ Π΄Π°ΠΆΠ΅ ΡΡΡΡΡΠΈΡΡΠΈΡΠ½ΠΎ, Π½ΠΎ ΠΈΡ ΡΡΠΎΠΈΡ Π΄ΠΎΠΏΠΎΠ»Π½ΡΡΡ ΡΠ΅ΠΏΠ»ΡΠΌ ΠΎΡΠ²Π΅ΡΠ΅Π½ΠΈΠ΅ΠΌ.
ΠΡΠ²Π΅ΡΠ΅Π½ΠΈΠ΅
Π‘Π²Π΅Ρ ΠΈΠ³ΡΠ°Π΅Ρ Π½Π΅ ΠΏΠΎΡΠ»Π΅Π΄Π½ΡΡ ΡΠΎΠ»Ρ Π² ΠΈΠ½ΡΠ΅ΡΡΠ΅ΡΠ°Ρ ΡΡΡΠ΄ΠΈΠΉ. Π‘ ΠΏΠΎΠΌΠΎΡΡΡ ΡΡΠΎΠΉ Π΄Π΅ΡΠ°Π»ΠΈ ΠΌΠΎΠΆΠ½ΠΎ ΡΠΊΠΎΡΡΠ΅ΠΊΡΠΈΡΠΎΠ²Π°ΡΡ ΠΏΡΠΎΠΏΠΎΡΡΠΈΠΈ ΠΏΠΎΠΌΠ΅ΡΠ΅Π½ΠΈΡ ΠΈ ΡΠ΄Π΅Π»Π°ΡΡ Π΅Π³ΠΎ ΠΏΡΠΎΡΡΠΎΡΠ½ΡΠΌ.
Π Π·Π°Π²ΠΈΡΠΈΠΌΠΎΡΡΠΈ ΠΎΡ ΡΠ°Π·ΠΌΠ΅ΡΠ΅Π½ΠΈΡ Π»Π°ΠΌΠΏ ΠΈ ΡΠ²Π΅ΡΠΈΠ»ΡΠ½ΠΈΠΊΠΎΠ², ΠΌΠΎΠΆΠ½ΠΎ Π²ΡΠ΄Π΅Π»ΠΈΡΡ ΡΡΠΈ ΡΡΠΎΠ²Π½Ρ ΠΎΡΠ²Π΅ΡΠ΅Π½ΠΈΡ: Π½ΠΈΠΆΠ½ΠΈΠΉ, ΡΡΠ΅Π΄Π½ΠΈΠΉ ΠΈ Π²Π΅ΡΡ Π½ΠΈΠΉ.
Π ΡΠ°ΠΌΠΎΠΌΡ Π½ΠΈΠΆΠ½Π΅ΠΌΡ ΡΡΡΡΡ ΠΌΠΎΠΆΠ½ΠΎ ΠΎΡΠ½Π΅ΡΡΠΈ Π½Π°ΠΏΠΎΠ»ΡΠ½ΡΠ΅ Π²Π°ΡΠΈΠ°Π½ΡΡ, ΠΊ ΡΡΠ΅Π΄Π½Π΅ΠΌΡ β Π½Π°ΡΡΠ΅Π½Π½ΡΠ΅ ΡΠ²Π΅ΡΠΈΠ»ΡΠ½ΠΈΠΊΠΈ, ΡΠΎΡΡΠ΅ΡΡ ΠΈ Π½Π°ΡΡΠΎΠ»ΡΠ½ΡΠ΅ Π»Π°ΠΌΠΏΡ. ΠΠ΅ΡΡ Π½ΠΈΠΉ ΠΆΠ΅ ΡΡΡΡ ΠΏΡΠ΅Π΄ΡΡΠ°Π²Π»Π΅Π½ ΠΏΠΎΡΠΎΠ»ΠΎΡΠ½ΡΠΌΠΈ ΡΠ²Π΅ΡΠΈΠ»ΡΠ½ΠΈΠΊΠ°ΠΌΠΈ ΠΈΠ»ΠΈ Π²ΡΡΡΠΎΠ΅Π½Π½ΠΎΠΉ ΠΏΠΎΠ΄ΡΠ²Π΅ΡΠΊΠΎΠΉ.
Π ΡΡΠ»ΠΎΠ²ΠΈΡΡ ΠΌΠ°Π»Π΅Π½ΡΠΊΠΎΠΉ ΡΡΡΠ΄ΠΈΠΈ ΡΠ²Π΅ΡΠΈΠ»ΡΠ½ΠΈΠΊΠΈ Π½ΠΈΠΆΠ½Π΅Π³ΠΎ ΡΡΠΎΠ²Π½Ρ ΠΏΡΠΈΠΌΠ΅Π½ΡΠ΅ΡΡΡ Π½Π΅ ΡΠ°ΡΡΠΎ. Π§Π°ΡΠ΅ Π²ΡΠ΅Π³ΠΎ ΠΊ ΡΠ°ΠΊΠΎΠΌΡ ΠΎΡΠΎΡΠΌΠ»Π΅Π½ΠΈΡ ΠΎΠ±ΡΠ°ΡΠ°ΡΡΡΡ ΡΠΎΠ»ΡΠΊΠΎ Π΄Π»Ρ Π²ΠΈΠ·ΡΠ°Π»ΡΠ½ΠΎΠ³ΠΎ ΡΠ°Π·Π΄Π΅Π»Π΅Π½ΠΈΡ Π³ΡΠ°Π½ΠΈΡ ΠΌΠ΅ΠΆΠ΄Ρ ΠΌΠ΅Π±Π΅Π»ΡΡ ΠΈ ΠΏΠΎΠ»ΠΎΠΌ Π½Π° ΠΊΡΡ Π½Π΅. ΠΡΡΠ΅ΠΊΡΠ½ΠΎ Π²ΡΠ³Π»ΡΠ΄ΠΈΡ ΡΠ°ΠΊΠΎΠ΅ ΠΎΡΠΎΡΠΌΠ»Π΅Π½ΠΈΠ΅ Π² ΡΠΏΠ°Π»ΡΠ½ΠΎΠΉ Π·ΠΎΠ½Π΅.
Π ΡΡΠ΅Π΄Π½Π΅ΠΌΡ ΡΡΠΎΠ²Π½Ρ ΠΎΡΠ½ΠΎΡΡΡΡΡ Π²ΡΠ΅ ΡΠ°Π·Π½ΠΎΠ²ΠΈΠ΄Π½ΠΎΡΡΠΈ ΡΠ²Π΅ΡΠΈΠ»ΡΠ½ΠΈΠΊΠΎΠ², ΠΈΠΌΠ΅ΡΡΠΈΠ΅ΡΡ Π² ΠΏΠΎΠΌΠ΅ΡΠ΅Π½ΠΈΠΈ. ΠΠ΅Π· ΡΡΠΈΡ ΠΏΡΠ΅Π΄ΠΌΠ΅ΡΠΎΠ² Π² ΠΆΠΈΠ»ΠΈΡΠ΅ Π½Π΅ ΠΎΠ±ΠΎΠΉΡΠΈΡΡ. ΠΡ ΡΡΠΎΠΈΡ ΠΏΠΎΠ΄Π±ΠΈΡΠ°ΡΡ Π² ΡΠΎΠΉ ΠΆΠ΅ ΡΡΠΈΠ»ΠΈΡΡΠΈΠΊΠ΅, ΡΡΠΎ ΠΈ ΠΎΠΊΡΡΠΆΠ°ΡΡΠΈΠΉ ΠΈΠ½ΡΠ΅ΡΡΠ΅Ρ.
Π Π²Π΅ΡΡ Π½Π΅ΠΌΡ ΡΡΠΎΠ²Π½Ρ ΠΎΡΠ½ΠΎΡΡΡΡΡ Π²ΡΡΡΠΎΠ΅Π½Π½ΡΠ΅ ΠΏΠΎΡΠΎΠ»ΠΎΡΠ½ΡΠ΅ ΡΠ²Π΅ΡΠΈΠ»ΡΠ½ΠΈΠΊΠΈ ΠΈ Π»ΡΡΡΡΡ. ΠΠΎΠ΄ΠΎΠ±ΡΠ°ΡΡ ΠΈΡ ΠΌΠΎΠΆΠ½ΠΎ Π΄Π»Ρ Π»ΡΠ±ΠΎΠ³ΠΎ ΠΈΠ½ΡΠ΅ΡΡΠ΅ΡΠ°. ΠΡΡΡΡΡ ΠΌΠΎΠ³ΡΡ ΠΈΠΌΠ΅ΡΡ ΡΡΠ°Π΄ΠΈΡΠΈΠΎΠ½Π½ΡΠΉ Π΄ΠΈΠ·Π°ΠΉΠ½ ΠΈΠ»ΠΈ Π±ΡΡΡ Π²ΡΠΏΠΎΠ»Π½Π΅Π½Π½ΡΠΌΠΈ Π² Π²ΠΈΠ΄Π΅ ΠΈΠ½ΡΠ΅ΡΠ΅ΡΠ½ΡΡ ΠΏΡΠΎΠΆΠ΅ΠΊΡΠΎΡΠΎΠ², Π° ΡΠ°ΠΊΠΆΠ΅ Π³Π°Π»ΠΎΠ³Π΅Π½ΠΎΠ²ΡΡ ΡΠΎΡΠ΅ΡΠ½ΡΡ ΡΠ²Π΅ΡΠΈΠ»ΡΠ½ΠΈΠΊΠΎΠ².
Π£ΡΠΈΡΡΠ²Π°Π΅ΠΌ Π΄Π΅ΡΠ°Π»ΠΈ
ΠΠ½ΡΠ΅ΡΡΠ΅Ρ ΠΏΠΎΠ»ΡΡΠΈΡΡΡ Π³Π°ΡΠΌΠΎΠ½ΠΈΡΠ½ΡΠΌ ΠΈ ΠΏΡΠΈΠ²Π»Π΅ΠΊΠ°ΡΠ΅Π»ΡΠ½ΡΠΌ, Π΅ΡΠ»ΠΈ Π΅Π³ΠΎ Π΄ΠΎΠΏΠΎΠ»Π½ΠΈΡΡ ΠΏΠΎΠ΄Ρ ΠΎΠ΄ΡΡΠΈΠΌΠΈ ΡΠ»Π΅ΠΌΠ΅Π½ΡΠ°ΠΌΠΈ Π΄Π΅ΠΊΠΎΡΠ°. ΠΠ½ΠΈ Π΄ΠΎΠ»ΠΆΠ½Ρ ΠΏΠΎΠ΄Ρ ΠΎΠ΄ΠΈΡΡ ΠΊ ΠΌΠ΅Π±Π΅Π»ΠΈ ΠΈ ΠΎΡΠ΄Π΅Π»ΠΊΠ΅ ΠΏΠΎ ΡΠ²Π΅ΡΡ ΠΈ ΡΡΠΈΠ»Ρ. ΠΡΠΎ ΠΌΠΎΠ³ΡΡ Π±ΡΡΡ ΠΊΡΠ°ΡΠΈΠ²ΡΠ΅ ΠΊΠ°ΡΡΠΈΠ½Ρ Ρ ΠΊΠ»Π°ΡΡΠΈΡΠ΅ΡΠΊΠΈΠΌΠΈ ΠΏΠ΅ΠΉΠ·Π°ΠΆΠ°ΠΌΠΈ ΠΈΠ»ΠΈ Π°Π²Π°Π½Π³Π°ΡΠ΄Π½ΡΠΌΠΈ ΠΈΠ·ΠΎΠ±ΡΠ°ΠΆΠ΅Π½ΠΈΡΠΌΠΈ. ΠΡΠ΅ Π·Π°Π²ΠΈΡΠΈΡ ΠΎΡ ΠΎΠ±ΡΠ΅ΠΉ ΡΡΠΈΠ»ΠΈΡΡΠΈΠΊΠΈ ΠΏΠΎΠΌΠ΅ΡΠ΅Π½ΠΈΡ:
- ΠΠ΅ Π½ΡΠΆΠ½ΠΎ Π·Π°Π³ΡΠΎΠΌΠΎΠΆΠ΄Π°ΡΡ ΠΊΠ²Π°ΡΡΠΈΡΡ Π±ΠΎΠ»ΡΡΠΈΠΌ ΠΊΠΎΠ»ΠΈΡΠ΅ΡΡΠ²ΠΎΠΌ ΡΠ°ΠΊΠΈΡ Π΄Π΅ΡΠ°Π»Π΅ΠΉ, ΠΈΠ½Π°ΡΠ΅ ΠΎΠ½ΠΈ Π·Π°ΠΉΠΌΡΡ ΠΌΠ½ΠΎΠ³ΠΎ ΠΌΠ΅ΡΡΠ°.
- ΠΠ΅ ΡΠ΅ΠΊΠΎΠΌΠ΅Π½Π΄ΡΠ΅ΡΡΡ Π·Π°ΡΡΠ°Π²Π»ΡΡΡ Π·ΠΎΠ½Ρ Π±ΠΎΠ»ΡΡΠΈΠΌΠΈ ΠΏΡΠ΅Π΄ΠΌΠ΅ΡΠ°ΠΌΠΈ ΠΌΠ΅Π±Π΅Π»ΠΈ ΡΠ΅ΠΌΠ½ΡΡ ΡΠΎΠ½ΠΎΠ², Π΅ΡΠ»ΠΈ ΠΊΠ²Π°ΡΡΠΈΡΠ° Π½Π΅ Π²ΡΠΏΠΎΠ»Π½Π΅Π½Π° Π² ΡΡΠΈΠ»Π΅ Π»ΠΎΡΡ. ΠΠΎΠ΄ΠΎΠ±Π½ΡΠ΅ Π΄Π΅ΡΠ°Π»ΠΈ Π±ΡΠ΄ΡΡ Π²ΡΠ±ΠΈΠ²Π°ΡΡΡΡ ΠΈΠ· ΠΎΠ±ΡΠ΅Π³ΠΎ Π°Π½ΡΠ°ΠΌΠ±Π»Ρ ΠΈ Π΄Π΅Π»Π°ΡΡ ΠΏΠ»ΠΎΡΠ°Π΄Ρ Π½Π΅ΡΡΡΠ½ΠΎΠΉ.
- ΠΡΡΠ°Π²Π»ΡΠΉΡΠ΅ Π΄ΠΎΡΡΠ°ΡΠΎΡΠ½ΠΎ ΡΠ²ΠΎΠ±ΠΎΠ΄Π½ΠΎΠ³ΠΎ ΠΌΠ΅ΡΡΠ° ΠΌΠ΅ΠΆΠ΄Ρ ΠΏΡΠ΅Π΄ΠΌΠ΅ΡΠ°ΠΌΠΈ ΠΌΠ΅Π±Π΅Π»ΠΈ, ΡΡΠΎΠ±Ρ ΠΏΡΠΎΡ ΠΎΠ΄ Π±ΡΠ» ΠΎΡΠΊΡΡΡΡΠΌ ΠΈ Π΄ΠΎΡΡΡΠΏΠ½ΡΠΌ.
- ΠΠ³ΡΠ°ΠΆΠ΄Π΅Π½ΠΈΡ ΠΌΠ΅ΠΆΠ΄Ρ Π·ΠΎΠ½Π°ΠΌΠΈ Π΄ΠΎΠ»ΠΆΠ½Ρ Π±ΡΡΡ Π²ΡΠΏΠΎΠ»Π½Π΅Π½Ρ Π² ΡΡΠΈΠ»Π΅, ΠΊΠΎΡΠΎΡΡΠΉ ΠΏΠΎΠ΄Ρ ΠΎΠ΄ΠΈΡ ΠΊ ΠΈΠ½ΡΠ΅ΡΡΠ΅ΡΡ.
- ΠΡΠ΄Π°Π²Π°ΠΉΡΠ΅ ΠΏΡΠ΅Π΄ΠΏΠΎΡΡΠ΅Π½ΠΈΠ΅ ΡΠΎΠ»ΡΠΊΠΎ ΠΊΠ°ΡΠ΅ΡΡΠ²Π΅Π½Π½ΡΠΌ ΠΌΠ°ΡΠ΅ΡΠΈΠ°Π»Π°ΠΌ. ΠΠ½ΠΈ Π±ΡΠ΄ΡΡ ΡΠΌΠΎΡΡΠ΅ΡΡΡΡ Π΄ΠΎΡΠΎΠ³ΠΎ ΠΈ ΠΊΡΠ°ΡΠΈΠ²ΠΎ Π² ΡΡΠ»ΠΎΠ²ΠΈΡΡ ΡΠ°ΠΊΠΎΠΉ ΡΠΎΠ²ΡΠ΅ΠΌΠ΅Π½Π½ΠΎΠΉ ΠΈ ΠΌΠΎΠ΄Π½ΠΎΠΉ ΠΊΠ²Π°ΡΡΠΈΡΡ.
ΠΡΠ°ΡΠΈΠ²ΡΠ΅ ΠΈ Π½Π΅ΠΎΠ±ΡΡΠ½ΡΠ΅ ΠΈΠ΄Π΅ΠΈ ΠΈΠ½ΡΠ΅ΡΡΠ΅ΡΠ°
ΠΠ½ΡΠ΅ΡΡΠ΅Ρ ΠΏΠΎΠ»ΡΡΠΈΡΡΡ ΠΎΡΠ΅Π½Ρ ΠΊΡΠ°ΡΠΈΠ²ΡΠΌ ΠΈ ΡΡΠ²ΡΡΠ²Π΅Π½Π½ΡΠΌ, Π΅ΡΠ»ΠΈ Π΅Π³ΠΎ ΠΎΡΠΎΡΠΌΠΈΡΡ Π² ΠΊΡΠ°ΡΠ½ΡΡ ΠΈ Π±Π΅Π»ΡΡ ΡΠΎΠ½Π°Ρ . ΠΠ°ΠΏΡΠΈΠΌΠ΅Ρ, Π½Π΅Π±ΠΎΠ»ΡΡΠΎΠΉ Π±Π΅Π»ΡΠΉ Π΄ΠΈΠ²Π°Π½ Ρ ΠΊΡΠ°ΡΠ½ΡΠΌΠΈ ΠΏΠΎΠ΄ΡΡΠΊΠ°ΠΌΠΈ ΠΏΠΎΡΡΠ°Π²ΠΈΡΡ ΠΏΠ΅ΡΠ΅Π΄ ΡΠ²Π΅ΡΠ»ΡΠΌ ΠΊΡΡ ΠΎΠ½Π½ΡΠΌ Π³Π°ΡΠ½ΠΈΡΡΡΠΎΠΌ Ρ ΠΊΡΠ°ΡΠ½ΠΎΠΉ ΠΏΠΎΠ΄Π»ΠΎΠΆΠΊΠΎΠΉ. Π‘ΡΠ΅Π½Ρ ΠΌΠΎΠΆΠ½ΠΎ ΠΎΡΠΎΡΠΌΠΈΡΡ Π±Π΅ΠΆΠ΅Π²ΠΎΠΉ ΠΈΠ»ΠΈ Π±Π΅Π»ΠΎΠΉ ΡΡΡΠΊΠ°ΡΡΡΠΊΠΎΠΉ, Π° Π½Π° ΠΏΠΎΠ» ΠΏΠΎΠ»ΠΎΠΆΠΈΡΡ ΡΠ²Π΅ΡΠ»ΡΠΉ Π»Π°ΠΌΠΈΠ½Π°Ρ Ρ ΠΊΠΎΠ²ΡΠΈΠΊΠ°ΠΌΠΈ Π±ΠΎΡΠ΄ΠΎΠ²ΠΎΠ³ΠΎ ΠΈΠ»ΠΈ ΡΠ΅ΠΌΠ½ΠΎ-ΠΊΡΠ°ΡΠ½ΠΎΠ³ΠΎ ΠΎΡΡΠ΅Π½ΠΊΠ°.
Π ΠΎΡΠΊΠΎΡΠ½ΠΎΠΉ ΠΎΠ±ΡΡΠ°Π½ΠΎΠ²ΠΊΠΈ Π² ΡΡΠΈΠ»Π΅ Π»ΠΎΡΡ ΠΌΠΎΠΆΠ½ΠΎ Π΄ΠΎΠ±ΠΈΡΡΡΡ Ρ ΠΏΠΎΠΌΠΎΡΡΡ ΡΡΠ΅Π½ Π±Π΅Π»ΠΎΠ³ΠΎ, ΡΠ΅ΠΌΠ½ΠΎ-ΠΊΠΎΡΠΈΡΠ½Π΅Π²ΠΎΠ³ΠΎ ΠΈ ΡΠ΅ΡΠΎΠ³ΠΎ ΡΠ²Π΅ΡΠ°, Π±ΠΎΠ»ΡΡΠΎΠ³ΠΎ Π΄ΠΈΠ²Π°Π½Π° ΡΠ²Π΅ΡΠ»ΠΎ-ΡΠ΅ΡΠΎΠ³ΠΎ ΠΎΡΡΠ΅Π½ΠΊΠ° ΠΈ Π±Π΅Π»ΠΎΠ³ΠΎ ΠΊΡΡ ΠΎΠ½Π½ΠΎΠ³ΠΎ Π³Π°ΡΠ½ΠΈΡΡΡΠ°, ΡΠ°ΡΠΏΠΎΠ»ΠΎΠΆΠ΅Π½Π½ΠΎΠ³ΠΎ Π·Π° Π·ΠΎΠ½ΠΎΠΉ Π³ΠΎΡΡΠΈΠ½ΠΎΠΉ. ΠΠ° ΠΏΠΎΠ» ΠΌΠΎΠΆΠ½ΠΎ ΠΏΠΎΠ»ΠΎΠΆΠΈΡΡ Π»Π°ΠΌΠΈΠ½Π°Ρ ΠΈ Π΄ΠΎΠΏΠΎΠ»Π½ΠΈΡΡ Π΅Π³ΠΎ ΡΠ΅ΠΌΠ½ΡΠΌ ΠΊΠΎΠ²ΡΠΎΠΌ Ρ Π²ΡΡΠΎΠΊΠΈΠΌ Π²ΠΎΡΡΠΎΠΌ. Π ΡΠ°ΠΊΠΎΠΉ ΠΊΠ²Π°ΡΡΠΈΡΠ΅ Π±ΡΠ΄ΡΡ Π³Π°ΡΠΌΠΎΠ½ΠΈΡΠ½ΠΎ ΡΠΌΠΎΡΡΠ΅ΡΡΡΡ ΠΏΠΎΡΠΎΠ»ΠΎΡΠ½ΡΠ΅ ΡΠ²Π΅ΡΠΈΠ»ΡΠ½ΠΈΠΊΠΈ Π² ΡΡΡΠΎΠ³ΠΎΠΌ ΠΈ Π»Π°ΠΊΠΎΠ½ΠΈΡΠ½ΠΎΠΌ ΡΡΠΈΠ»Π΅.
Π‘ΡΠΈΠ»ΡΠ½ΡΠΉ ΠΈ ΡΡΡΠ½ΡΠΉ ΠΈΠ½ΡΠ΅ΡΡΠ΅Ρ ΠΏΠΎΠ»ΡΡΠΈΡΡΡ, Π΅ΡΠ»ΠΈ ΠΎΠ±ΡΠ°ΡΠΈΡΡΡΡ ΠΊ ΠΊΠΎΠ½ΡΡΠ°ΡΡΠ½ΠΎΠΌΡ ΡΠΎΡΠ΅ΡΠ°Π½ΠΈΡ ΡΠ²Π΅ΡΠ»ΠΎΠ³ΠΎ ΠΏΠΎΡΠΎΠ»ΠΊΠ°, Π±Π΅ΠΆΠ΅Π²ΡΡ ΡΡΠ΅Π½ ΠΈ ΡΠ΅ΠΌΠ½ΠΎ-ΠΊΠΎΡΠΈΡΠ½Π΅Π²ΠΎΠ³ΠΎ Π»Π°ΠΌΠΈΠ½Π°ΡΠ°. Π‘ ΠΏΠΎΠΌΠΎΡΡΡ Π½Π΅Π±ΠΎΠ»ΡΡΠΎΠΉ ΠΏΠ΅ΡΠ΅Π³ΠΎΡΠΎΠ΄ΠΊΠΈ ΠΌΠΎΠΆΠ½ΠΎ ΠΎΡΠ΄Π΅Π»ΠΈΡΡ ΠΊΡΡ Π½Ρ, Π΄ΠΎΠΏΠΎΠ»Π½ΠΈΡΡ Π΅Π΅ Π³Π°ΡΠ½ΠΈΡΡΡΠΎΠΌ Π½Π΅ΠΆΠ½ΠΎ-Π·Π΅Π»Π΅Π½ΠΎΠ³ΠΎ ΡΠ²Π΅ΡΠ° ΠΈ Π±Π΅Π»ΡΠΌ ΡΠ·ΠΊΠΈΠΌ ΡΡΠΎΠ»ΠΈΠΊΠΎΠΌ. Π Π³ΠΎΡΡΠΈΠ½ΠΎΠΉ Π·ΠΎΠ½Π΅ ΡΠ»Π΅Π΄ΡΠ΅Ρ ΡΠ°Π·ΠΌΠ΅ΡΡΠΈΡΡ Π±Π΅Π»ΡΠΉ ΠΊΠΎΠΆΠ°Π½ΡΠΉ Π΄ΠΈΠ²Π°Π½, Π° Π½Π°ΠΏΡΠΎΡΠΈΠ² Π½Π΅Π³ΠΎ ΠΏΠΎΡΡΠ°Π²ΠΈΡΡ ΡΠ΅Π»Π΅Π²ΠΈΠ·ΠΎΡ ΠΈ ΡΠ΅ΠΌΠ½ΡΠΉ ΠΊΠΎΠΌΠΏΡΡΡΠ΅ΡΠ½ΡΠΉ ΡΡΠΎΠ» ΡΠΎ ΡΠ²Π΅ΡΠ»ΡΠΌ ΡΡΡΠ»ΠΎΠΌ.
ΠΊΠ²Π°ΡΡΠΈΡΠ° Ρ ΠΎΠ΄Π½ΠΈΠΌ ΠΎΠΊΠ½ΠΎΠΌ, ΠΈΠ½ΡΠ΅ΡΡΠ΅Ρ ΠΈ ΠΏΠ»Π°Π½ΠΈΡΠΎΠ²ΠΊΠ°
ΠΡΠ΅ΠΈΠΌΡΡΠ΅ΡΡΠ²Π° ΠΈ Π½Π΅Π΄ΠΎΡΡΠ°ΡΠΊΠΈ
ΠΠ²Π°ΡΡΠΈΡΡ-ΡΡΡΠ΄ΠΈΠΈ Π² Π½Π°ΡΠ΅ Π²ΡΠ΅ΠΌΡ ΠΏΠΎΠ»ΡΠ·ΡΡΡΡΡ ΡΡΡΠΎΠΉΡΠΈΠ²ΠΎΠΉ ΠΏΠΎΠΏΡΠ»ΡΡΠ½ΠΎΡΡΡΡ Ρ ΠΌΠΎΠ»ΠΎΠ΄ΡΡ Π»ΡΠ΄Π΅ΠΉ, ΠΏΠ΅Π½ΡΠΈΠΎΠ½Π΅ΡΠΎΠ² ΠΈ ΡΠ΅ΠΌΠ΅ΠΉΠ½ΡΡ ΠΏΠ°Ρ. ΠΠ΅Π±ΠΎΠ»ΡΡΠ°Ρ ΠΏΠ»ΠΎΡΠ°Π΄Ρ, Π²ΡΠ΅Π³ΠΎ 20 — 30 ΠΊΠ²Π°Π΄ΡΠ°ΡΠ½ΡΡ ΠΌΠ΅ΡΡΠΎΠ², Π² ΡΠΎΠ²ΠΎΠΊΡΠΏΠ½ΠΎΡΡΠΈ Ρ ΠΏΡΠΎΠ΄ΡΠΌΠ°Π½Π½ΡΠΌ Π΄ΠΈΠ·Π°ΠΉΠ½ΠΎΠΌ Π΄Π΅Π»Π°ΡΡ ΠΏΡΠΎΠΆΠΈΠ²Π°Π½ΠΈΠ΅ Π² ΡΠ°ΠΊΠΎΠΌ ΠΆΠΈΠ»ΡΠ΅ Π΄ΠΎΡΡΠ°ΡΠΎΡΠ½ΠΎ ΠΊΠΎΠΌΡΠΎΡΡΠ½ΡΠΌ ΠΈ ΠΎΡΠ½ΠΎΡΠΈΡΠ΅Π»ΡΠ½ΠΎ Π½Π΅Π΄ΠΎΡΠΎΠ³ΠΈΠΌ.
ΠΠΎΠ΄Π½ΡΡ ΡΡΡΠ΄ΠΈΡ Ρ Π³ΠΎΡΠΎΠ²ΠΎΠΉ ΠΏΠ»Π°Π½ΠΈΡΠΎΠ²ΠΊΠΎΠΉ ΡΠ΅Π³ΠΎΠ΄Π½Ρ ΠΌΠΎΠΆΠ½ΠΎ ΠΏΡΠΈΠΎΠ±ΡΠ΅ΡΡΠΈ Π½Π΅ΠΏΠΎΡΡΠ΅Π΄ΡΡΠ²Π΅Π½Π½ΠΎ Ρ Π·Π°ΡΡΡΠΎΠΉΡΠΈΠΊΠ°. Π Π½Π΅ΠΊΠΎΡΠΎΡΡΡ ΡΠ΄Π°ΡΡΠΈΡ ΡΡ ΠΊΡΡΠΏΠ½ΡΡ ΠΆΠΈΠ»ΡΡ ΠΊΠΎΠΌΠΏΠ»Π΅ΠΊΡΠ°Ρ Π΄ΠΎΠ»Ρ ΡΡΡΠ΄ΠΈΠΉ ΡΠΎΡΡΠ°Π²Π»ΡΠ΅Ρ Π΄ΠΎ 30 %. ΠΠΎΠΆΠ½ΠΎ ΠΏΡΠΈΠΎΠ±ΡΠ΅ΡΡΠΈ ΠΈ ΠΏΠ΅ΡΠ΅ΠΎΠ±ΠΎΡΡΠ΄ΠΎΠ²Π°ΡΡ Π² ΡΡΡΠ΄ΠΈΡ Π½Π΅Π±ΠΎΠ»ΡΡΡΡ ΠΊΠ²Π°ΡΡΠΈΡΡ ΡΡΠ°ΡΠΎΠ³ΠΎ ΠΆΠΈΠ»ΠΎΠ³ΠΎ ΡΠΎΠ½Π΄Π°, Π½Π°ΠΏΡΠΈΠΌΠ΅Ρ, ΠΊΠ»Π°ΡΡΠΈΡΠ΅ΡΠΊΡΡ ΠΎΠ΄Π½ΠΎΠΊΠΎΠΌΠ½Π°ΡΠ½ΡΡ ΠΊΠ²Π°ΡΡΠΈΡΡ ΠΎΠ±ΡΠ΅ΠΉ ΠΏΠ»ΠΎΡΠ°Π΄ΡΡ 28 ΠΊΠ². ΠΌΠ΅ΡΡΠΎΠ². ΠΠ΅ΡΠ΅ΠΏΠ»Π°Π½ΠΈΡΠΎΠ²ΠΊΠΎΠΉ ΡΡΠΎΠΈΡ Π·Π°Π½ΡΡΡΡΡ ΠΏΡΠΈ Π½Π°Π»ΠΈΡΠΈΠΈ Π½Π΅ΡΠΊΠΎΠ»ΡΠΊΠΈΡ ΠΏΡΠ΅Π΄ΠΏΠΎΡΡΠ»ΠΎΠΊ:
- Π² ΡΠ΅ΡΠ½ΡΡ ΠΊΠ²Π°ΡΡΠΈΡΡ Π½Π΅ Π²ΠΏΠΈΡΡΠ²Π°ΡΡΡΡ ΡΠΎΠ²ΡΠ΅ΠΌΠ΅Π½Π½Π°Ρ ΠΌΠ΅Π±Π΅Π»Ρ ΠΈ Π±ΡΡΠΎΠ²Π°Ρ ΡΠ΅Ρ Π½ΠΈΠΊΠ°;
- Π² ΠΊΠ²Π°ΡΡΠΈΡΠ΅ ΠΆΠΈΠ²ΡΡ Π½Π΅ Π±ΠΎΠ»Π΅Π΅ Π΄Π²ΡΡ ΡΠ΅Π»ΠΎΠ²Π΅ΠΊ, Π³ΠΎΡΠΎΠ²ΡΡ ΠΎΠΏΠ»Π°ΡΠΈΡΡ ΡΡΠ»ΡΠ³ΠΈ Π΄ΠΈΠ·Π°ΠΉΠ½Π΅ΡΠ° ΠΈ ΠΏΡΠ΅ΠΎΠ΄ΠΎΠ»Π΅ΡΡ ΠΌΠ°ΡΡΡΠ°Π±Π½ΡΡ ΡΠ΅ΠΊΠΎΠ½ΡΡΡΡΠΊΡΠΈΡ;
- ΠΆΠ΅Π»Π°Π½ΠΈΠ΅ ΠΆΠΈΡΡ Π² ΠΏΡΠΎΡΡΠΎΡΠ½ΠΎΠΌ ΠΆΠΈΠ»ΡΠ΅ ΠΏΠ΅ΡΠ΅Π²Π΅ΡΠΈΠ²Π°Π΅Ρ ΠΆΠ΅Π»Π°Π½ΠΈΠ΅ ΡΠ΅Π΄ΠΈΠ½ΠΈΡΡΡΡ;
- ΠΏΡΠΈΠ²ΡΡΠΊΠ° ΠΏΠΎΠ»ΡΠ·ΠΎΠ²Π°ΡΡΡΡ ΡΠ°ΠΌΡΠΌΠΈ Π½Π΅ΠΎΠ±Ρ ΠΎΠ΄ΠΈΠΌΡΠΌΠΈ Π²Π΅ΡΠ°ΠΌΠΈ, ΠΎΡΡΡΡΡΡΠ²ΠΈΠ΅ ΡΠΊΠ»ΠΎΠ½Π½ΠΎΡΡΠΈ ΠΊ Ρ ΡΠ°Π½Π΅Π½ΠΈΡ Π½Π΅Π½ΡΠΆΠ½ΠΎΠ³ΠΎ Ρ Π»Π°ΠΌΠ°.
ΠΠ»Π°Π²Π½ΠΎΠ΅ ΠΏΡΠ΅ΠΈΠΌΡΡΠ΅ΡΡΠ²ΠΎ ΡΡΡΠ΄ΠΈΠΈ Π² ΡΠΎΠΌ, ΡΡΠΎ Π² ΡΠ΅Π·ΡΠ»ΡΡΠ°ΡΠ΅ ΠΏΠ΅ΡΠ΅ΠΏΠ»Π°Π½ΠΈΡΠΎΠ²ΠΊΠΈ ΠΎΠ±ΡΠ°Π·ΡΠ΅ΡΡΡ ΠΎΠ΄Π½ΠΎ ΠΏΡΠΎΡΡΠΎΡΠ½ΠΎΠ΅ ΠΏΡΠΎΠΏΠΎΡΡΠΈΠΎΠ½Π°Π»ΡΠ½ΠΎΠ΅ ΠΏΠΎΠΌΠ΅ΡΠ΅Π½ΠΈΠ΅. Π‘ΡΠ΅Π½Π°ΠΌΠΈ Π±ΡΠ΄Π΅Ρ ΠΎΠ³ΠΎΡΠΎΠΆΠ΅Π½ ΡΠΎΠ»ΡΠΊΠΎ ΡΠ°Π½ΡΠ·Π΅Π», ΡΠΎΠ²ΠΌΠ΅ΡΠ΅Π½Π½ΡΠΉ Ρ Π²Π°Π½Π½ΠΎΠΉ, Π° ΠΎΡΡΠ°Π»ΡΠ½ΡΠ΅ ΠΏΠ΅ΡΠ΅Π³ΠΎΡΠΎΠ΄ΠΊΠΈ Π±ΡΠ΄ΡΡ ΡΠ½Π΅ΡΠ΅Π½Ρ.
ΠΠΎΠΌΠ΅ΡΠ΅Π½ΠΈΠ΅ Π±ΡΠ΄Π΅Ρ ΠΎΡΠ²Π΅ΡΠ΅Π½ΠΎ Π»ΡΡΡΠ΅, ΠΏΠΎΡΠΊΠΎΠ»ΡΠΊΡ ΠΊΠ²Π°ΡΡΠΈΡΠ° ΠΏΡΠ΅Π²ΡΠ°ΡΠΈΡΡΡ Π² Π΅ΡΡΠ΅ΡΡΠ²Π΅Π½Π½ΠΎ ΠΎΡΠ²Π΅ΡΠ΅Π½Π½ΠΎΠ΅ ΠΏΡΠΎΡΡΡΠ°Π½ΡΡΠ²ΠΎ Ρ Π΄Π²ΡΠΌΡ ΠΎΠΊΠ½Π°ΠΌΠΈ Π±Π΅Π· ΡΠ·ΠΊΠΈΡ ΠΈ ΡΠ΅ΠΌΠ½ΡΡ ΠΊΠΎΡΠΈΠ΄ΠΎΡΠΎΠ².
ΠΠ»Π°Π½ΠΈΡΠΎΠ²ΠΊΠ° ΡΡΡΠ΄ΠΈΠΈ Π΄Π°Π΅Ρ ΠΏΡΠΎΡΡΠΎΡ ΡΠ°Π½ΡΠ°Π·ΠΈΠΈ Π΄ΠΈΠ·Π°ΠΉΠ½Π΅ΡΠ°. Π‘ΡΡΠ΅ΠΌΠ»Π΅Π½ΠΈΠ΅ ΡΠ°Π·ΠΌΠ΅ΡΠ΅Π½ΠΈΡ ΡΡΠ½ΠΊΡΠΈΠΎΠ½Π°Π»ΡΠ½ΡΡ ΠΏΡΠ΅Π΄ΠΌΠ΅ΡΠΎΠ², ΠΊΠΎΡΠΎΡΡΠ΅ Π² ΡΡΠ°ΡΠΎΠΉ ΠΊΠ²Π°ΡΡΠΈΡΠ΅ Π½ΠΈΠΊΠΎΠ³Π΄Π° Π±Ρ Π½Π΅ ΠΏΠΎΠΌΠ΅ΡΡΠΈΠ»ΠΈΡΡ, ΠΌΠΎΠΆΠ΅Ρ ΠΏΡΠΈΠ²Π΅ΡΡΠΈ ΠΊ ΡΠΎΠ·Π΄Π°Π½ΠΈΡ ΠΈ ΡΠ΅Π°Π»ΠΈΠ·Π°ΡΠΈΠΈ ΠΈΠ΄Π΅ΠΉ ΡΠ½ΠΈΠΊΠ°Π»ΡΠ½ΠΎΠ³ΠΎ Π΄ΠΈΠ·Π°ΠΉΠ½Π΅ΡΡΠΊΠΎΠ³ΠΎ ΠΏΡΠΎΠ΅ΠΊΡΠ°.
ΠΠ²Π°ΡΡΠΈΡΡ ΠΌΠΎΠΆΠ½ΠΎ ΡΠ°Π·Π΄Π΅Π»ΠΈΡΡ Π½Π° Π²ΠΈΡΡΡΠ°Π»ΡΠ½ΡΠ΅ Π·ΠΎΠ½Ρ, ΠΏΡΠΈΠΌΠ΅Π½ΡΡ ΡΠΎΠ²ΡΠ΅ΠΌΠ΅Π½Π½ΡΠ΅ ΠΎΡΠ΄Π΅Π»ΠΎΡΠ½ΡΠ΅ ΠΌΠ°ΡΠ΅ΡΠΈΠ°Π»Ρ. ΠΡΠΈ ΡΡΠΎΠΌ ΡΠΎΡ ΡΠ°Π½ΠΈΡΡ ΠΈΠ·Π½Π°ΡΠ°Π»ΡΠ½ΡΡ ΡΡΠ½ΠΊΡΠΈΠΎΠ½Π°Π»ΡΠ½ΠΎΡΡΡ ΠΊΠ°ΠΆΠ΄ΠΎΠ³ΠΎ ΠΏΠΎΠΌΠ΅ΡΠ΅Π½ΠΈΡ, Π²ΠΎΡΠ΅Π΄ΡΠ΅Π³ΠΎ Π² ΡΠΎΡΡΠ°Π² ΡΡΡΠ΄ΠΈΠΈ. ΠΠ΅ΠΆΠ΄Ρ Π·ΠΎΠ½Π°ΠΌΠΈ ΠΏΡΠΈΠ³ΠΎΡΠΎΠ²Π»Π΅Π½ΠΈΡ, ΠΏΡΠΈΠ΅ΠΌΠ° ΠΏΠΈΡΠΈ ΠΈ Π·ΠΎΠ½ΠΎΠΉ ΠΎΡΠ΄ΡΡ Π° Π² ΠΊΠ²Π°ΡΡΠΈΡΠ΅-ΡΡΡΠ΄ΠΈΠΈ ΠΏΠ΅ΡΠ΅Π΄Π²ΠΈΠ³Π°ΡΡΡΡ ΠΏΠ΅ΡΠ΅ΠΌΠ΅ΡΠ°ΡΡΡΡ Π±ΡΠ΄Π΅Ρ Π³ΠΎΡΠ°Π·Π΄ΠΎ ΡΠ²ΠΎΠ±ΠΎΠ΄Π½Π΅Π΅.
ΠΡΠ΅ΠΆΠ΄Π΅ ΡΠ΅ΠΌ Π·Π°Π½ΡΡΡΡΡ ΠΎΠ±ΡΡΡΡΠΎΠΉΡΡΠ²ΠΎΠΌ, Π²Π°ΠΆΠ½ΠΎ ΠΏΠΎΠ½ΡΡΡ ΠΈ Π½Π΅Π³Π°ΡΠΈΠ²Π½ΡΠ΅ ΡΡΠΎΡΠΎΠ½Ρ ΡΠ°ΠΊΠΎΠ³ΠΎ ΠΆΠΈΠ»ΠΈΡΠ°. ΠΠ»Π°Π²Π½ΡΠΉ ΠΌΠΈΠ½ΡΡ ΡΠΎΡΡΠΎΠΈΡ Π² ΡΠΎΠΌ, ΡΡΠΎ ΡΠ°ΠΌΠΎΠ³ΠΎ ΠΊΠΎΠΌΡΠΎΡΡΠ½ΠΎΠ³ΠΎ ΡΡΠΎΠ²Π½Ρ ΠΏΡΠΎΠΆΠΈΠ²Π°Π½ΠΈΡ ΠΌΠΎΠΆΠ΅Ρ Π΄ΠΎΡΡΠΈΡΡ ΡΠΎΠ»ΡΠΊΠΎ ΠΎΠ΄ΠΈΠ½ ΡΠ΅Π»ΠΎΠ²Π΅ΠΊ. ΠΡΠ»ΠΈ Π²ΡΠ΅ ΠΆΠ΅ Π² ΠΊΠ²Π°ΡΡΠΈΡΠ΅ ΠΏΡΠΎΠΆΠΈΠ²Π°ΡΡ Π΄Π²Π° ΡΠ΅Π»ΠΎΠ²Π΅ΠΊΠ°, Ρ Π½ΠΈΡ Π΄ΠΎΠ»ΠΆΠ΅Π½ Π±ΡΡΡ ΠΌΠ°ΠΊΡΠΈΠΌΠ°Π»ΡΠ½ΠΎ ΡΠΎΠ²ΠΏΠ°Π΄Π°ΡΡΠΈΠΉ ΡΠΈΡΠΌ, ΡΠ΅ΡΠ΅Π΄ΡΡΡΠΈΠΉ Π²ΡΠ΅ΠΌΡ ΡΠ°Π±ΠΎΡΡ ΡΠΎ Π²ΡΠ΅ΠΌΠ΅Π½Π΅ΠΌ ΠΎΡΠ΄ΡΡ Π°.
ΠΠΎΡΡΠΎΠΌΡ ΠΌΠΎΠ»ΠΎΠ΄ΠΎΠΉ ΡΠ΅ΠΌΡΠ΅, Π² ΠΊΠΎΡΠΎΡΠΎΠΉ ΠΏΠ»Π°Π½ΠΈΡΡΠ΅ΡΡΡ ΠΏΠΎΡΠ²Π»Π΅Π½ΠΈΠ΅ ΡΠ΅Π±Π΅Π½ΠΊΠ°, ΡΠ»Π΅Π΄ΡΠ΅Ρ Π·Π°Π΄ΡΠΌΠ°ΡΡΡΡ ΠΎ ΠΏΠ΅ΡΠ΅Π΅Π·Π΄Π΅ ΠΈΠ· ΡΡΡΠ΄ΠΈΠΈ Π² Π±ΠΎΠ»Π΅Π΅ ΠΏΠΎΠ΄Ρ ΠΎΠ΄ΡΡΡΡ ΠΊΠ²Π°ΡΡΠΈΡΡ, Π³Π΄Π΅ ΠΌΠΎΠΆΠ½ΠΎ Π±ΡΠ΄Π΅Ρ Π²ΡΠ΄Π΅Π»ΠΈΡΡ ΠΎΡΠ΄Π΅Π»ΡΠ½ΡΡ Π΄Π΅ΡΡΠΊΡΡ ΠΊΠΎΠΌΠ½Π°ΡΡ.
ΠΠΎΠ½ΡΠ΅ΠΏΡΠΈΡ ΠΊΠ²Π°ΡΡΠΈΡΡ-ΡΡΡΠ΄ΠΈΠΈ Π½Π΅ ΠΏΡΠ΅Π΄ΠΏΠΎΠ»Π°Π³Π°Π΅Ρ ΡΠ°Π·ΠΌΠ΅ΡΠ΅Π½ΠΈΡ ΡΠ»ΠΈΡΠΊΠΎΠΌ Π³ΡΠΎΠΌΠΎΠ·Π΄ΠΊΠΎΠΉ ΠΌΠΎΠ½ΠΎΡΡΠ½ΠΊΡΠΈΠΎΠ½Π°Π»ΡΠ½ΠΎΠΉ ΠΌΠ΅Π±Π΅Π»ΠΈ, Π½Π°ΠΏΡΠΈΠΌΠ΅Ρ, ΠΎΠ³ΡΠΎΠΌΠ½ΠΎΠΉ Π΄Π²ΡΡΠΏΠ°Π»ΡΠ½ΠΎΠΉ ΠΊΡΠΎΠ²Π°ΡΠΈ, ΠΊΠΎΡΠΎΡΠ°Ρ Π·Π°ΠΉΠΌΠ΅Ρ Π²ΡΠ΅ ΠΏΠΎΠΌΠ΅ΡΠ΅Π½ΠΈΠ΅ Π³ΠΎΡΡΠΈΠ½ΠΎΠΉ. ΠΠΎ Π²ΡΠ΅ΠΌΡ ΠΏΡΠΎΡΠ΅ΠΌΡ, ΡΠ΅ΠΌΠΎΠ½Ρ ΠΈ ΠΎΡΠ½Π°ΡΠ΅Π½ΠΈΠ΅ ΡΠ°ΠΊΠΎΠΉ ΠΊΠ²Π°ΡΡΠΈΡΡ ΠΏΠΎΡΡΠ΅Π±ΡΠ΅Ρ Π±ΠΎΠ»ΡΡΠ΅ ΠΌΠ°ΡΠ΅ΡΠΈΠ°Π»ΡΠ½ΡΡ Π·Π°ΡΡΠ°Ρ, ΡΠ΅ΠΌ ΠΎΠ±ΡΡΠ½ΡΠΉ ΠΊΠΎΡΠΌΠ΅ΡΠΈΡΠ΅ΡΠΊΠΈΠΉ ΡΠ΅ΠΌΠΎΠ½Ρ.
Π§ΡΠΎ Π½ΡΠΆΠ½ΠΎ Π·Π½Π°ΡΡ ΠΏΡΠΈ ΠΏΠ΅ΡΠ΅ΠΏΠ»Π°Π½ΠΈΡΠΎΠ²ΠΊΠ΅
ΠΡΠΆΠ½ΠΎ ΠΏΠΎΠ½ΠΈΠΌΠ°ΡΡ, ΡΡΠΎ Π΄Π°Π»Π΅ΠΊΠΎ Π½Π΅ Π²ΡΡΠΊΡΡ ΠΊΠ²Π°ΡΡΠΈΡΡ ΠΌΠΎΠΆΠ½ΠΎ ΠΏΡΠ΅Π²ΡΠ°ΡΠΈΡΡ Π² ΡΡΡΠ΄ΠΈΡ. ΠΠΎΡΠ»Π΅ ΡΠ°Π·ΡΠ°Π±ΠΎΡΠΊΠΈ ΠΏΡΠΎΠ΅ΠΊΡΠ° ΡΠ΅ΠΊΠΎΠ½ΡΡΡΡΠΊΡΠΈΠΈ, ΠΏΡΠΈΠ΄Π΅ΡΡΡ ΠΏΡΠΎΠΉΡΠΈ Π½Π΅ΠΌΠ°Π»ΠΎ ΡΠΎΠ³Π»Π°ΡΡΡΡΠΈΡ ΠΈΠ½ΡΡΠ°Π½ΡΠΈΠΉ Π΄Π»Ρ Π΅Π³ΠΎ ΡΡΠ²Π΅ΡΠΆΠ΄Π΅Π½ΠΈΡ. ΠΠ°Π»Π΅ΠΊΠΎ Π½Π΅ Π²ΠΎ Π²ΡΠ΅Ρ ΡΠ»ΡΡΠ°ΡΡ ΠΏΡΠΎΠ΅ΠΊΡ Π±ΡΠ΄Π΅Ρ ΡΡΠ²Π΅ΡΠΆΠ΄Π΅Π½.
Π Π°Π·ΡΠ΅ΡΠ°Π΅ΡΡΡ ΡΠ½ΠΎΡΠΈΡΡ ΡΠΎΠ»ΡΠΊΠΎ Π½Π΅Π½Π΅ΡΡΡΠΈΠ΅ ΡΡΠ΅Π½Ρ. Π‘Π½ΠΎΡ Π½Π΅ΡΡΡΠΈΡ ΡΡΠ΅Π½ ΠΌΠΎΠΆΠ΅Ρ ΠΏΡΠΈΠ²Π΅ΡΡΠΈ ΠΊ ΡΠ°Π·ΡΡΡΠ΅Π½ΠΈΡ Π²ΡΠ΅Π³ΠΎ Π΄ΠΎΠΌΠ°. ΠΠΏΡΠ΅Π΄Π΅Π»ΠΈΡΡ, ΠΊΠ°ΠΊΠΈΠ΅ ΡΡΠ΅Π½Ρ Π² ΠΊΠ²Π°ΡΡΠΈΡΠ΅ ΡΠ²Π»ΡΡΡΡΡ Π½Π΅ΡΡΡΠΈΠΌΠΈ ΠΈΠ»ΠΈ Π½Π΅Π½Π΅ΡΡΡΠΈΠΌΠΈ ΠΌΠΎΠΆΠ΅Ρ ΡΠΎΠ»ΡΠΊΠΎ ΡΠΏΠ΅ΡΠΈΠ°Π»ΠΈΡΡ. ΠΠΎΠ·Π²Π΅Π΄Π΅Π½ΠΈΠ΅ ΠΏΠ΅ΡΠ΅Π³ΠΎΡΠΎΠ΄ΠΎΠΊ, Π½Π°ΠΏΡΠΈΠΌΠ΅Ρ, Ρ ΡΠ΅Π»ΡΡ Π²ΡΠ³ΠΎΡΠ°ΠΆΠΈΠ²Π°Π½ΠΈΡ Π³Π°ΡΠ΄Π΅ΡΠΎΠ±Π½ΠΎΠΉ Π·ΠΎΠ½Ρ ΡΠ°ΠΊΠΆΠ΅ ΠΌΠΎΠΆΠ΅Ρ ΠΈΠΌΠ΅ΡΡ ΠΎΠ³ΡΠ°Π½ΠΈΡΠ΅Π½ΠΈΡ, ΠΏΠΎΡΠΊΠΎΠ»ΡΠΊΡ, ΠΎΠ½ΠΈ Π΄ΠΎΠ±Π°Π²Π»ΡΡΡ Π΄ΠΎΠΏΠΎΠ»Π½ΠΈΡΠ΅Π»ΡΠ½ΡΠ΅ Π½Π°Π³ΡΡΠ·ΠΊΠΈ Π½Π° ΠΏΠ΅ΡΠ΅ΠΊΡΡΡΠΈΡ. Π’ΡΠ΅Π±ΠΎΠ²Π°Π½ΠΈΡ Π±Π΅Π·ΠΎΠΏΠ°ΡΠ½ΠΎΡΡΠΈ Π·Π°ΠΏΡΠ΅ΡΠ°ΡΡ ΠΏΠ΅ΡΠ΅Π½ΠΎΡ ΠΏΠ΅ΡΠ΅Π³ΠΎΡΠΎΠ΄ΠΎΠΊ ΠΈ ΠΏΠ΅ΡΠ΅ΠΎΠ±ΠΎΡΡΠ΄ΠΎΠ²Π°Π½ΠΈΠ΅ Π΄Π²Π΅ΡΠ½ΡΡ ΠΏΡΠΎΠ΅ΠΌΠΎΠ² Π³Π°Π·ΠΈΡΠΈΡΠΈΡΠΎΠ²Π°Π½Π½ΠΎΠΉ ΠΊΡΡ Π½ΠΈ.
ΠΠ΅ΡΠ΅Π½ΠΎΡ ΡΠ»Π΅ΠΊΡΡΠΈΡΠΈΡΠΈΡΠΎΠ²Π°Π½Π½ΠΎΠΉ ΠΊΡΡ Π½ΠΈ ΠΈ Π²Π°Π½Π½ΠΎΠΉ Ρ ΡΠ°Π½ΡΠ·Π»ΠΎΠΌ Π²ΠΎΠ·ΠΌΠΎΠΆΠ΅Π½ Π±ΡΠ΄Π΅Ρ Π² ΠΏΡΠΎΡΡΡΠ°Π½ΡΡΠ²ΠΎ, ΡΠ°ΡΠΏΠΎΠ»ΠΎΠΆΠ΅Π½Π½ΠΎΠ΅ Π½Π°Π΄ Π½Π΅ΠΆΠΈΠ»ΡΠΌ ΠΏΠΎΠΌΠ΅ΡΠ΅Π½ΠΈΠ΅ΠΌ ΡΠΎΡΠ΅Π΄Π΅ΠΉ ΡΠ½ΠΈΠ·Ρ, Π½Π°ΠΏΡΠΈΠΌΠ΅Ρ, Π² ΠΊΠΎΡΠΈΠ΄ΠΎΡ. ΠΡΠΈ ΠΏΠ΅ΡΠ΅Π½ΠΎΡΠ΅ Π½ΡΠΆΠ½ΠΎ ΠΎΠ±ΡΠ·Π°ΡΠ΅Π»ΡΠ½ΠΎ ΠΏΡΠΎΠ΄ΡΠΌΠ°ΡΡ Π²ΠΎΠ·ΠΌΠΎΠΆΠ½ΡΠ΅ ΠΈΠ·ΠΌΠ΅Π½Π΅Π½ΠΈΡ ΡΠΈΡΡΠ΅ΠΌ Π²ΠΎΠ΄ΠΎΡΠ½Π°Π±ΠΆΠ΅Π½ΠΈΡ, ΠΎΡΠΎΠΏΠ»Π΅Π½ΠΈΡ ΠΈ Π²Π΅Π½ΡΠΈΠ»ΡΡΠΈΠΈ, Π° ΡΠ°ΠΊΠΆΠ΅ Π½Π΅ Π·Π°Π±ΡΡΡ ΠΎΠ± ΡΡΡΡΠΎΠΉΡΡΠ²Π΅ Π³ΠΈΠ΄ΡΠΎΠΈΠ·ΠΎΠ»ΡΡΠΈΠΈ ΠΏΠΎΠ»Π°.
ΠΠΈΠ·Π°ΠΉΠ½
Π₯ΠΎΡΠΎΡΠΈΠΉ ΠΏΡΠΎΠ΅ΠΊΡ ΠΏΠ΅ΡΠ΅ΠΏΠ»Π°Π½ΠΈΡΠΎΠ²ΠΊΠΈ ΠΈ Π³ΡΠ°ΠΌΠΎΡΠ½ΠΎΠ΅ Π·ΠΎΠ½ΠΈΡΠΎΠ²Π°Π½ΠΈΠ΅ Π΄ΠΎΠ»ΠΆΠ½Ρ Π±ΡΡΡ ΡΠ°Π·ΡΠ°Π±ΠΎΡΠ°Π½Ρ ΡΠ°ΠΊ, ΡΡΠΎΠ±Ρ ΡΠΌΠ΅ΡΡΠΈΡΡ Π² ΡΡΡΠ΄ΠΈΠΈ ΠΏΡΠΈΡ ΠΎΠΆΡΡ, ΡΠ°Π½ΡΠ·Π΅Π», ΠΊΡΡ Π½Ρ, Π·ΠΎΠ½Ρ ΠΎΡΠ΄ΡΡ Π° ΠΈ ΠΏΠΎΠ΄ΡΠΎΠ±Π½ΠΎΠ΅ ΠΏΠΎΠΌΠ΅ΡΠ΅Π½ΠΈΠ΅.
ΠΠ»Π°Π½ΠΈΡΡΡ ΠΎΡΠ³Π°Π½ΠΈΠ·Π°ΡΠΈΡ ΡΡΡΠ΄ΠΈΠΈ 28 ΠΊΠ²Π°Π΄ΡΠ°ΡΠ½ΡΡ ΠΌΠ΅ΡΡΠΎΠ² Π»ΡΠ±ΠΎΠΉ ΠΊΠΎΠ½ΡΠΈΠ³ΡΡΠ°ΡΠΈΠΈ, Ρ ΡΠ΅Π»ΡΡ Π΄ΠΎΠ±Π°Π²Π»Π΅Π½ΠΈΡ ΠΏΡΠΎΡΡΠΎΡΠ° ΠΈ ΠΊΠΎΠΌΡΠΎΡΡΠ° ΡΠ»Π΅Π΄ΡΠ΅Ρ ΡΡΠΊΠΎΠ²ΠΎΠ΄ΡΡΠ²ΠΎΠ²Π°ΡΡΡΡ ΡΠ»Π΅Π΄ΡΡΡΠΈΠΌ:
- ΠΌΠΎΠΆΠ½ΠΎ ΡΠΌΠ΅Π½ΡΡΠΈΡΡ ΠΏΠ»ΠΎΡΠ°Π΄Ρ Π²Π°Π½Π½ΠΎΠΉ, ΡΠΎΠ²ΠΌΠ΅ΡΡΠΈΠ² Π΅Π΅ Ρ ΡΡΠ°Π»Π΅ΡΠΎΠΌ, ΡΠ°ΠΊ ΠΊΠ°ΠΊ Π»ΡΡΡΠ΅ ΡΡΠΊΠΎΠ½ΠΎΠΌΠΈΡΡ ΠΏΠΎΠ»Π΅Π·Π½ΠΎΠ΅ ΠΏΡΠΎΡΡΡΠ°Π½ΡΡΠ²ΠΎ Π² ΠΏΠΎΠ»ΡΠ·Ρ ΡΠ²Π΅Π»ΠΈΡΠ΅Π½ΠΈΡ ΠΊΡΡ Π½ΠΈ;
- ΡΡΡΠ°Π½ΠΎΠ²ΠΈΠ² Π²ΠΌΠ΅ΡΡΠΎ Π²Π°Π½Π½Ρ ΡΠΎΠ²ΡΠ΅ΠΌΠ΅Π½Π½ΡΡ Π΄ΡΡΠ΅Π²ΡΡ ΠΊΠ°Π±ΠΈΠ½Ρ, ΠΌΠΎΠΆΠ½ΠΎ ΡΠΌΠ΅Π½ΡΡΠΈΡΡ ΠΏΠ»ΠΎΡΠ°Π΄Ρ ΡΠ°Π½ΠΈΡΠ°ΡΠ½ΠΎΠΉ Π·ΠΎΠ½Ρ;
- Π² Π΄Π΅ΠΊΠΎΡΠ΅ ΠΊΠ²Π°ΡΡΠΈΡΡ ΠΌΠΎΠΆΠ½ΠΎ ΡΠ°Π·ΠΌΠ΅ΡΡΠΈΡΡ Π½Π° ΡΡΠ΅Π½Π°Ρ Π΄ΡΡΠ³ ΠΏΡΠΎΡΠΈΠ² Π΄ΡΡΠ³Π° Π·Π΅ΡΠΊΠ°Π»Π° ΠΈΠ»ΠΈ ΡΠΎΡΠ΅ΡΠ°ΡΡ Π·Π΅ΡΠΊΠ°Π»ΡΠ½ΡΠ΅ ΠΈ ΠΌΠ°ΡΠΎΠ²ΡΠ΅ ΠΏΠΎΠ²Π΅ΡΡ Π½ΠΎΡΡΠΈ;
- Π² ΠΎΡΠ΄Π΅Π»ΠΊΠ΅ ΠΊΠ²Π°ΡΡΠΈΡΡ Π² ΡΠ΅Π»ΠΎΠΌ, Π° ΡΠ°ΠΊΠΆΠ΅ Π²Π°Π½Π½ΠΎΠΉ ΠΈΡΠΏΠΎΠ»ΡΠ·ΠΎΠ²Π°ΡΡ ΡΠ²Π΅ΡΠ»ΡΠ΅ ΡΠΏΠΎΠΊΠΎΠΉΠ½ΡΠ΅ ΠΎΡΡΠ΅Π½ΠΊΠΈ ΠΈ Π±Π΅Π»ΡΠΉ ΡΠ²Π΅Ρ, Π΄ΠΎΠ±Π°Π²Π»ΡΡ ΡΡΠΊΠΈΠ΅ Π°ΠΊΡΠ΅Π½ΡΠΈΡΡΡΡΠΈΠ΅ Π²Π½ΠΈΠΌΠ°Π½ΠΈΠ΅ Π΄Π΅ΡΠ°Π»ΠΈ;
- Π½Π΅ Π·Π°Π±ΡΠ² ΡΡΠ΅ΠΏΠ»ΠΈΡΡ Π±Π°Π»ΠΊΠΎΠ½Π½ΡΡ Π·ΠΎΠ½Ρ, ΡΠΎΠ²ΠΌΠ΅ΡΡΠΈΡΡ Ρ Π½Π΅ΠΉ ΠΊΡΡ ΠΎΠ½Π½ΠΎΠ΅ ΠΏΡΠΎΡΡΡΠ°Π½ΡΡΠ²ΠΎ, ΠΏΡΠΈ ΡΡΠΎΠΌ Π΄ΠΎΠΏΡΡΡΠΈΠΌΠΎ ΠΈΡΠΏΠΎΠ»ΡΠ·ΠΎΠ²Π°Π½ΠΈΠ΅ ΠΏΠΎΠ΄ΠΎΠΊΠΎΠ½Π½ΠΎΠ³ΠΎ Π±Π»ΠΎΠΊΠ° Π² ΠΊΠ°ΡΠ΅ΡΡΠ²Π΅ ΠΎΠ±Π΅Π΄Π΅Π½Π½ΠΎΠ³ΠΎ ΡΡΠΎΠ»Π° ΠΈΠ»ΠΈ ΠΌΠΎΠ΄Π½ΠΎΠΉ Π±Π°ΡΠ½ΠΎΠΉ ΡΡΠΎΠΉΠΊΠΈ;
- ΠΎΠ±ΡΡΠ°Π²ΠΈΡΡ ΠΏΡΠΎΡΡΡΠ°Π½ΡΡΠ²ΠΎ ΠΌΠ΅Π±Π΅Π»ΡΡ Π½Π°Π΄ΠΎ ΡΠ°ΡΠΈΠΎΠ½Π°Π»ΡΠ½ΠΎ, ΠΎΠ±ΠΎΠ·Π½Π°ΡΠΈΠ² Π·ΠΎΠ½Ρ ΠΎΡΠ΄ΡΡ Π° ΠΏΠΎΠ΄Π°Π»ΡΡΠ΅ ΠΎΡ Π²Ρ ΠΎΠ΄Π° ΠΈ ΠΎΡΡΠ°Π²ΠΈΠ² ΡΠ²ΠΎΠ±ΠΎΠ΄Π½ΡΡ Π·ΠΎΠ½Ρ;
- ΡΡΠ°ΡΠΈΠΎΠ½Π°ΡΠ½ΡΠ΅ ΠΏΠ΅ΡΠ΅Π³ΠΎΡΠΎΠ΄ΠΊΠΈ ΡΠΌΠ΅ΡΡΠ½Ρ Π² Π²ΡΡΡΠ½ΡΡΠΎΠΌ ΠΏΠΎΠΌΠ΅ΡΠ΅Π½ΠΈΠΈ, Π² ΠΎΡΡΠ°Π»ΡΠ½ΡΡ ΡΠ»ΡΡΠ°ΡΡ Π»ΡΡΡΠ΅ Π·ΠΎΠ½ΠΈΡΠΎΠ²Π°Π½ΠΈΠ΅ ΡΠ²Π΅ΡΠ°ΠΌΠΈ ΠΈ ΡΠ°ΠΊΡΡΡΠ°ΠΌΠΈ ΠΎΡΠ΄Π΅Π»ΠΎΡΠ½ΡΡ ΠΌΠ°ΡΠ΅ΡΠΈΠ°Π»ΠΎΠ² ΠΈΠ»ΠΈ ΠΌΠΎΠ±ΠΈΠ»ΡΠ½ΡΠΌΠΈ ΠΏΠ΅ΡΠ΅Π³ΠΎΡΠΎΠ΄ΠΊΠ°ΠΌΠΈ.
ΠΡΡΠΌΠΎΡΠ³ΠΎΠ»ΡΠ½Π°Ρ ΡΠ·ΠΊΠ°Ρ ΠΈ Π΄Π»ΠΈΠ½Π½Π°Ρ ΠΏΠ»Π°Π½ΠΈΡΠΎΠ²ΠΊΠ° ΠΊΠ²Π°ΡΡΠΈΡΡ ΡΡΠ΅Π±ΡΠ΅Ρ ΠΎΡΠΎΠ±ΡΡ ΠΏΡΠΈΠ΅ΠΌΠΎΠ² Π² ΠΎΡΠ³Π°Π½ΠΈΠ·Π°ΡΠΈΠΈ Π²Π½ΡΡΡΠ΅Π½Π½Π΅Π³ΠΎ ΠΏΡΠΎΡΡΡΠ°Π½ΡΡΠ²Π°. ΠΡΠ»ΠΈΡΠ½ΡΠΌ Π²Π°ΡΠΈΠ°Π½ΡΠΎΠΌ Π΄Π»Ρ ΡΡΡΠ΄ΠΈΠΈ 28 ΠΊΠ². ΠΌ, Ρ ΡΠΈΡΠΈΠ½ΠΎΠΉ, Π½Π΅ ΠΏΡΠ΅Π²ΡΡΠ°ΡΡΠ΅ΠΉ ΡΡΠ΅Ρ ΠΌΠ΅ΡΡΠΎΠ², ΠΈ ΡΠ°ΡΠΏΠΎΠ»ΠΎΠΆΠ΅Π½ΠΈΠ΅ΠΌ Π΄Π²Π΅ΡΠΈ ΠΈ ΠΎΠΊΠ½Π° Π½Π° ΡΠ·ΠΊΠΈΡ ΡΡΠ΅Π½Π°Ρ Π½Π°ΠΏΡΠΎΡΠΈΠ² Π΄ΡΡΠ³ Π΄ΡΡΠ³Π° ΠΌΠΎΠΆΠ΅Ρ Π±ΡΡΡ Π·ΠΎΠ½ΠΈΡΠΎΠ²Π°Π½ΠΈΠ΅ ΡΠ΅ΡΡΡΠ΅Ρ ΡΠ΅ΠΊΡΠΈΠΎΠ½Π½ΠΎΠΉ ΡΠ°Π·Π΄Π²ΠΈΠΆΠ½ΠΎΠΉ ΠΏΠ΅ΡΠ΅Π³ΠΎΡΠΎΠ΄ΠΊΠΎΠΉ. Π’Π°ΠΊΠ°Ρ ΠΏΠ΅ΡΠ΅Π³ΠΎΡΠΎΠ΄ΠΊΠ° Π² ΠΈΠ½ΡΠ΅ΡΡΠ΅ΡΠ΅ ΠΌΠ°Π»Π΅Π½ΡΠΊΠΎΠΉ ΠΊΠ²Π°ΡΡΠΈΡΡ ΠΌΠ΅ΠΆΠ΄Ρ ΠΊΡΡ ΠΎΠ½Π½ΠΎΠΉ Π·ΠΎΠ½ΠΎΠΉ ΠΈ Π·ΠΎΠ½ΠΎΠΉ ΠΎΡΠ΄ΡΡ Π°, ΠΌΠΎΠΆΠ΅Ρ Π±ΡΡΡ ΠΈΠ· ΠΏΡΠΎΠ·ΡΠ°ΡΠ½ΠΎΠ³ΠΎ ΡΡΠ΅ΠΊΠ»Π°. Π‘Π΅Π³ΠΎΠ΄Π½Ρ Π΄ΠΈΠ·Π°ΠΉΠ½Π΅ΡΡ ΠΏΡΠ΅Π΄Π»Π°Π³Π°ΡΡ Π½Π΅ΠΎΠ±ΡΡΠ½ΡΠΉ ΡΠΏΠΎΡΠΎΠ± Π·ΠΎΠ½ΠΈΡΠΎΠ²Π°Π½ΠΈΡ Ρ ΠΏΠΎΠΌΠΎΡΡΡ ΠΏΠ΅ΡΠ΅Π³ΠΎΡΠΎΠ΄ΠΊΠΈ, ΠΎΠ΄Π½Π° ΠΈΠ· ΡΡΠΎΡΠΎΠ½ ΠΊΠΎΡΠΎΡΠΎΠΉ Π±ΡΠ΄Π΅Ρ ΠΌΠ°ΡΠΎΠ²ΠΎΠΉ, Π° Π΄ΡΡΠ³Π°Ρ Π·Π΅ΡΠΊΠ°Π»ΡΠ½ΠΎΠΉ.
ΠΠΊΠΊΡΡΠ°ΡΠ½ΠΎΡΡΡ ΠΈ ΡΡΡΠ½ΡΠΉ Π²Π½Π΅ΡΠ½ΠΈΠΉ Π²ΠΈΠ΄ ΡΡΡΠ΄ΠΈΠΈ Π-ΠΎΠ±ΡΠ°Π·Π½ΠΎΠΉ ΠΏΠ»Π°Π½ΠΈΡΠΎΠ²ΠΊΠΈ ΠΏΡΠΈΠ΄Π°Π΄ΡΡ Π²ΠΌΠ΅ΡΡΠΈΡΠ΅Π»ΡΠ½ΡΠ΅ Π²ΡΡΡΠΎΠ΅Π½Π½ΡΠ΅ ΡΠΊΠ°ΡΡ ΠΈ Π²ΡΡΡΠΎΠ΅Π½Π½Π°Ρ Π±ΡΡΠΎΠ²Π°Ρ ΡΠ΅Ρ Π½ΠΈΠΊΠ°, ΠΏΠΎΠ»Π½ΠΎΡΡΡΡ ΡΠ°Π·Π³ΡΡΠΆΠ°ΡΡΠΈΠ΅ ΠΈΠ½ΡΠ΅ΡΡΠ΅Ρ. ΠΠΎΠ΄Ρ ΠΎΠ΄ΡΡΠΈΠΌ ΡΠ΅ΡΠ΅Π½ΠΈΠ΅ΠΌ Π΄Π»Ρ Π½Π΅Π±ΠΎΠ»ΡΡΠΎΠΉ ΡΠ·ΠΊΠΎΠΉ Π³ΠΎΡΡΠΈΠ½ΠΎΠΉ ΠΌΠΎΠΆΠ΅Ρ ΡΡΠ°ΡΡ ΠΎΡΠΊΠ°Π· ΠΎΡ ΠΌΠ°ΡΡΠΈΠ²Π½ΠΎΠΉ ΠΌΠ΅Π±Π΅Π»ΠΈ Π² ΠΏΠΎΠ»ΡΠ·Ρ Π²ΡΡΡΠΎΠ΅Π½Π½ΡΡ ΠΎΡΠΊΠΈΠ΄Π½ΡΡ ΠΊΠΎΠ½ΡΡΡΡΠΊΡΠΈΠΉ: ΠΊΡΠΎΠ²Π°ΡΠΈ Π² Π·ΠΎΠ½Π΅ ΠΎΡΠ΄ΡΡ Π° ΠΈ ΡΡΠΎΠ»Π΅ΡΠ½ΠΈΡΡ Π² ΠΎΠ±Π΅Π΄Π΅Π½Π½ΠΎΠΉ Π·ΠΎΠ½Π΅. ΠΡΠ΄Π΅Π»ΠΊΠ° ΠΏΠΎΠ»Π° ΡΠ²Π΅ΡΠ»ΡΠΌΠΈ ΡΠΎΡΠ½ΠΎΠ²ΡΠΌΠΈ Π΄ΠΎΡΠΊΠ°ΠΌΠΈ ΠΈ Π±Π΅Π»Π°Ρ ΠΏΠΎΠ²Π΅ΡΡ Π½ΠΎΡΡΡ ΠΎΡΡΡΠΊΠ°ΡΡΡΠ΅Π½Π½ΡΡ ΡΡΠ΅Π½ ΠΈ ΠΌΠ΅Π±Π΅Π»ΠΈ Π²ΠΈΠ·ΡΠ°Π»ΡΠ½ΠΎ ΡΠ΄Π΅Π»Π°ΡΡ ΠΏΠΎΠΌΠ΅ΡΠ΅Π½ΠΈΠ΅ Π½Π°ΠΌΠ½ΠΎΠ³ΠΎ ΡΠ²Π΅ΡΠ»Π΅Π΅ ΠΈ ΠΏΡΠΎΡΡΠΎΡΠ½Π΅Π΅.
ΠΠ½ΡΠ΅ΡΠ΅ΡΠ½ΡΠΌ Π²Π°ΡΠΈΠ°Π½ΡΠΎΠΌ ΡΡΠ°Π½Π΅Ρ ΡΡΡΠ΄ΠΈΡ ΠΏΡΡΠΌΠΎΡΠ³ΠΎΠ»ΡΠ½ΠΎΠΉ ΡΠΎΡΠΌΡ, ΡΠΏΡΠΎΠ΅ΠΊΡΠΈΡΠΎΠ²Π°Π½Π½Π°Ρ ΠΈΠ· ΠΎΠ΄Π½ΠΎΠΊΠΎΠΌΠ½Π°ΡΠ½ΠΎΠΉ ΠΊΠ²Π°ΡΡΠΈΡΡ Ρ Π±Π°Π»ΠΊΠΎΠ½ΠΎΠΌ ΠΈΠ»ΠΈ Π»ΠΎΠ΄ΠΆΠΈΠ΅ΠΉ. ΠΠ° ΡΡΠ΅Ρ ΠΏΡΠΈΡΠΎΠ΅Π΄ΠΈΠ½Π΅Π½ΠΈΡ Π»ΠΎΠ΄ΠΆΠΈΠΈ Ρ ΠΊΠ°ΡΠ΅ΡΡΠ²Π΅Π½Π½ΡΠΌ ΠΎΡΡΠ΅ΠΊΠ»Π΅Π½ΠΈΠ΅ΠΌ ΠΎΠ±ΡΠ°Ρ ΠΏΠ»ΠΎΡΠ°Π΄Ρ ΠΏΠΎΠΌΠ΅ΡΠ΅Π½ΠΈΡ ΡΠ²Π΅Π»ΠΈΡΠΈΠ²Π°Π΅ΡΡΡ Π½Π° Π½Π΅ΡΠΊΠΎΠ»ΡΠΊΠΎ ΠΊΠ²Π°Π΄ΡΠ°ΡΠ½ΡΡ ΠΌΠ΅ΡΡΠΎΠ², Π·ΠΎΠ½Π° Π³ΠΎΡΡΠΈΠ½ΠΎΠΉ ΠΏΡΠΈΠΎΠ±ΡΠ΅ΡΠ°Π΅Ρ Π΄ΠΎΠΏΠΎΠ»Π½ΠΈΡΠ΅Π»ΡΠ½ΠΎΠ΅ Π΅ΡΡΠ΅ΡΡΠ²Π΅Π½Π½ΠΎΠ΅ ΠΎΡΠ²Π΅ΡΠ΅Π½ΠΈΠ΅. ΠΠΎΠ΄ΠΆΠΈΡ Π² ΡΠ°ΠΊΠΎΠΉ ΠΊΠ²Π°ΡΡΠΈΡΠ΅ ΠΈΡΠΏΠΎΠ»ΡΠ·ΡΠ΅ΡΡΡ ΠΊΠ°ΠΊ Π·ΠΎΠ½Π° ΠΎΡΠ΄ΡΡ Π° Ρ Π½Π΅Π±ΠΎΠ»ΡΡΠΈΠΌ Π΄ΠΈΠ²Π°Π½ΠΎΠΌ ΠΈΠ»ΠΈ ΡΠ°Π±ΠΎΡΠΈΠΉ ΠΊΠ°Π±ΠΈΠ½Π΅Ρ Ρ ΠΊΠΎΠΌΠΏΡΡΡΠ΅ΡΠ½ΡΠΌ ΡΡΠΎΠ»ΠΎΠΌ. ΠΠ»Ρ ΠΏΡΠΈΠ΄Π°Π½ΠΈΡ Π³ΠΎΡΡΠΈΠ½ΠΎΠΉ Ρ Π»ΠΎΠ΄ΠΆΠΈΠ΅ΠΉ Π²ΠΈΠ·ΡΠ°Π»ΡΠ½ΠΎΠ³ΠΎ Π΅Π΄ΠΈΠ½ΡΡΠ²Π°, ΠΎΡΠ΄Π΅Π»ΠΊΡ Π»ΡΡΡΠ΅ ΡΠ΄Π΅Π»Π°ΡΡ Π² ΠΎΠ΄Π½ΠΎΠΉ ΡΠ²Π΅ΡΠΎΠ²ΠΎΠΉ Π³Π°ΠΌΠΌΠ΅ Ρ ΠΈΡΠΏΠΎΠ»ΡΠ·ΠΎΠ²Π°Π½ΠΈΠ΅ΠΌ ΠΎΠ΄ΠΈΠ½Π°ΠΊΠΎΠ²ΡΡ ΠΌΠ°ΡΠ΅ΡΠΈΠ°Π»ΠΎΠ².
ΠΡΡΠΎΠΊΠΈΠ΅ ΠΏΠΎΡΠΎΠ»ΠΊΠΈ Π΄ΠΎΠΌΠΎΠ² ΡΡΠ°ΡΠΎΠΉ ΠΏΠΎΡΡΡΠΎΠΉΠΊΠΈ ΠΏΠΎΠ·Π²ΠΎΠ»ΡΡΡ ΡΠ΅Π°Π»ΠΈΠ·ΠΎΠ²Π°ΡΡ ΡΠΊΡΠΊΠ»ΡΠ·ΠΈΠ²Π½ΡΠΉ ΠΏΡΠΎΠ΅ΠΊΡ ΠΊΠ²Π°ΡΡΠΈΡΡ-ΡΡΡΠ΄ΠΈΠΈ Ρ ΠΎΠ΄Π½ΠΈΠΌ ΠΎΠΊΠ½ΠΎΠΌ ΠΈ Π²ΡΠΎΡΡΠΌ ΡΡΠΎΠ²Π½Π΅ΠΌ, ΠΈΡΠΏΠΎΠ»ΡΠ·ΡΠ΅ΠΌΡΠΌ ΠΏΠΎΠ΄ ΡΠΏΠ°Π»ΡΠ½ΡΡ Π·ΠΎΠ½Ρ. ΠΡΠΎΡΡΡΠ°Π½ΡΡΠ²ΠΎ Π½Π° Π²Ρ ΠΎΠ΄Π΅ ΠΌΠΎΠΆΠ½ΠΎ Π·Π°Π½ΡΡΡ ΠΊΡΡ Π½Π΅ΠΉ, ΠΌΠ΅ΡΡΠΎ ΠΏΠΎΠ΄ Π»Π΅ΡΡΠ½ΠΈΡΠ΅ΠΉ ΠΌΠΎΠΆΠ½ΠΎ ΠΎΡΠ²Π΅ΡΡΠΈ ΠΏΠΎΠ΄ Ρ ΡΠ°Π½Π΅Π½ΠΈΠ΅ Π²Π΅ΡΠ΅ΠΉ. ΠΠ»Π°Π³ΠΎΠ΄Π°ΡΡ ΡΠ°ΠΊΠΎΠΌΡ Π΄ΠΈΠ·Π°ΠΉΠ½Ρ, ΠΎΠ±ΡΠ°Π·ΡΠ΅ΡΡΡ ΠΏΡΠΎΡΡΠΎΡΠ½Π°Ρ ΠΈ ΡΠ²Π΅ΡΠ»Π°Ρ Π³ΠΎΡΡΠΈΠ½Π°Ρ, ΡΠΎΠ²ΠΌΠ΅ΡΠ΅Π½Π½Π°Ρ Ρ ΡΠ°Π±ΠΎΡΠ΅ΠΉ Π·ΠΎΠ½ΠΎΠΉ.
ΠΠ³Π»Π°Π²Π»Π΅Π½ΠΈΠ΅ ΡΡΠ°ΡΡΠΈ:
Π¦Π²Π΅ΡΠΎΠ²Π°Ρ ΠΏΠ°Π»ΠΈΡΡΠ°
ΠΠΈΠ·Π°ΠΉΠ½Π΅ΡΡΠΊΠΈΠΉ ΡΠ΅ΠΌΠΎΠ½Ρ ΠΊΠ²Π°ΡΡΠΈΡΡ ΡΡΡΠ΄ΠΈΠΈ Π½Π°ΠΏΠΎΠ»ΠΎΠ²ΠΈΠ½Ρ ΡΠΎΡΡΠΎΠΈΡ ΠΈΠ· ΡΠ²Π΅ΡΠ°. ΠΠ½ Π·Π°Π½ΠΈΠΌΠ°Π΅Ρ ΠΏΡΠ°ΠΊΡΠΈΡΠ΅ΡΠΊΠΈ Π³Π»Π°Π²Π½ΡΡ ΡΠΎΠ»Ρ, ΡΠ°ΠΊ ΠΊΠ°ΠΊ ΠΎΡ Π½Π΅Π³ΠΎ Π·Π°Π²ΠΈΡΠΈΡ ΠΈ ΠΎΠ±ΡΠΈΠΉ ΠΏΡΠΎΡΡΠΎΡ, ΠΈ Π²ΠΎΡΠΏΡΠΈΡΡΠΈΠ΅ ΠΊΠΎΠΌΠ½Π°ΡΡ, Π΅Π΅ ΡΡΠ΅ΠΏΠ΅Π½Ρ ΠΏΡΠΈΠ½ΡΡΠΈΡ.
ΠΠ΄Π½ΠΎ ΠΈ ΡΠΎΠΆΠ΅ ΠΏΠΎΠΌΠ΅ΡΠ΅Π½ΠΈΠ΅ ΠΌΠΎΠΆΠ΅Ρ Π²ΡΠ³Π»ΡΠ΄Π΅ΡΡ ΡΠΎΠ²Π΅ΡΡΠ΅Π½Π½ΠΎ ΠΏΠΎ-ΡΠ°Π·Π½ΠΎΠΌΡ, Π² Π·Π°Π²ΠΈΡΠΈΠΌΠΎΡΡΠΈ ΠΎΡ Π²ΡΠ±ΡΠ°Π½Π½ΡΡ ΡΠ²Π΅ΡΠΎΠ². ΠΠ°ΠΏΡΠΈΠΌΠ΅Ρ, ΠΏΠ°ΡΡΠ΅Π»Ρ ΠΈ ΡΠ²Π΅ΡΠ»ΡΠ΅ ΡΠΎΠ½Π° ΡΠ²Π΅Π»ΠΈΡΠΈΠ²Π°ΡΡ ΠΊΠΎΠΌΠ½Π°ΡΡ, Π΄Π΅Π»Π°ΡΡ Π΅Π΅ Π½Π΅ΠΌΠ½ΠΎΠ³ΠΎ Π±ΠΎΠ»ΡΡΠ΅ ΠΏΡΠΈ Π·ΡΠΈΡΠ΅Π»ΡΠ½ΠΎΠΌ ΠΎΡΠΌΠΎΡΡΠ΅. Π Π΅ΡΠ»ΠΈ Π΄ΠΎΠ±Π°Π²ΠΈΡΡ ΡΡΠΊΠΈΡ ΠΈ ΡΠΎΡΠ½ΡΡ ΠΎΡΡΠ΅Π½ΠΊΠΎΠ², ΠΎΠ½ΠΈ Π±ΡΠ΄ΡΡ ΡΠΎΠ³ΡΠ΅Π²Π°ΡΡ ΠΈ ΡΠΏΡΠΎΡΠ°ΡΡ Π²ΠΎΡΠΏΡΠΈΡΡΠΈΠ΅ ΠΏΠΎΠΌΠ΅ΡΠ΅Π½ΠΈΡ. Π‘ ΡΠ΅ΠΌΠ½ΠΎΠΉ ΠΏΠ°Π»ΠΈΡΡΠΎΠΉ Π½ΡΠΆΠ½ΠΎ Π±ΡΡΡ ΠΎΡΡΠΎΡΠΎΠΆΠ½ΡΠΌ.
ΠΠ΅Π±ΠΎΠ»ΡΡΠΎΠΉ ΠΏΠ΅ΡΠ΅Π±ΠΎΡ Ρ ΡΠ΅ΡΠ½ΡΠΌ ΡΠ²Π΅ΡΠΎΠΌ ΡΠ΄Π΅Π»Π°Π΅Ρ ΠΊΠΎΠΌΠ½Π°ΡΡ ΡΠ»ΠΈΡΠΊΠΎΠΌ ΠΌΠ°Π»Π΅Π½ΡΠΊΠΎΠΉ ΠΈ Π·Π°ΡΡΠ°Π²ΠΈΡ ΡΡΠ²ΡΡΠ²ΠΎΠ²Π°ΡΡ ΡΠ΅Π±Ρ Π½Π΅ΠΊΠΎΠΌΡΠΎΡΡΠ½ΠΎ. ΠΡΠΎΠ±Π΅Π½Π½ΠΎ ΡΡΠΎ ΠΊΠ°ΡΠ°Π΅ΡΡΡ ΠΏΠΎΠ»ΠΎΡΠΊΠΎΠ², ΠΊΠΎΡΠΎΡΡΠ΅ Π²ΠΈΠ·ΡΠ°Π»ΡΠ½ΠΎ Π½Π°ΡΠΈΠ½Π°ΡΡ Π΄Π°Π²ΠΈΡΡ. ΠΠ΅ΡΠ΅ΠΈΠ·Π±ΡΡΠΎΠΊ ΡΠ΅ΡΠ½ΡΡ ΡΠΎΠ½ΠΎΠ² Π²ΠΎΠΎΠ±ΡΠ΅ ΠΌΠΎΠΆΠ΅Ρ ΠΏΡΠΈΠ²Π΅ΡΡΠΈ ΠΊ Π΄ΠΈΡΠΊΠΎΠΌΡΠΎΡΡΡ.
Π£ΠΌΠ΅ΡΠ΅Π½Π½ΠΎΠ΅ ΠΊΠΎΠ»ΠΈΡΠ΅ΡΡΠ²ΠΎ ΡΠ΅ΠΌΠ½ΡΡ ΡΠ²Π΅ΡΠΎΠ² ΠΆΠ΅ ΠΌΠΎΠΆΠ΅Ρ ΡΠΎΠ·Π΄Π°ΡΡ ΡΡΡ ΠΈ ΠΏΡΠΈΠ²Π΅ΡΡΠΈ ΠΊ ΡΡΠΈΠ»ΠΈΠ·Π°ΡΠΈΠΈ. Π’Π°ΠΊ ΠΊΠ°ΠΊ ΡΠ΅ΡΠ½ΡΠΉ ΡΠ΅ΠΉΡΠ°Ρ Π² ΠΌΠΎΠ΄Π΅, ΡΠΎΠ²ΡΠ΅ΠΌ Π±Π΅Π· Π½Π΅Π³ΠΎ ΠΎΠ±ΠΎΠΉΡΠΈΡΡ Π½Π΅ ΠΏΠΎΠ»ΡΡΠΈΡΡΡ, ΠΏΠΎΡΡΠΎΠΌΡ ΠΎΠ½ Π²ΠΏΠΎΠ»Π½Π΅ ΠΏΡΠΈΠΌΠ΅Π½ΠΈΠΌ.
Π‘ΡΠ°Π½Π΄Π°ΡΡΠ½ΠΎ ΡΠ²Π΅Ρ ΠΎΠΏΡΠ΅Π΄Π΅Π»ΡΠ΅ΡΡΡ ΠΏΠ»ΠΎΡΠ°Π΄ΡΡ. Π§Π΅ΠΌ ΠΎΠ½Π° ΠΌΠ΅Π½ΡΡΠ΅ β ΡΠ΅ΠΌ ΡΠ²Π΅ΡΠ»Π΅Π΅ Π΄ΠΎΠ»ΠΆΠ½Ρ Π±ΡΡΡ ΡΠΎΠ½Π°. Π‘ΡΡΠ΄ΠΈΠΈ 22 ΠΊΠ² ΠΌ Π΄ΠΎΠ»ΠΆΠ½Ρ Π±ΡΡΡ Π½Π° 70% Π² ΡΠ΅ΠΏΠ»ΡΡ ΠΎΡΡΠ΅Π½ΠΊΠ°Ρ .
Π£Π½ΠΈΠ²Π΅ΡΡΠ°Π»ΡΠ½ΡΠΌΠΈ ΠΏΡΠΎΠΏΠΎΡΡΠΈΡΠΌΠΈ Π±ΡΠ΄ΡΡ 85% ΡΠ²Π΅ΡΠ»ΠΎΠ³ΠΎ (Π±Π΅ΠΆΠ΅Π²ΡΠΉ, ΡΠΎΠ·ΠΎΠ²ΡΠΉ, ΡΠ°Π·Π»ΠΈΡΠ½ΡΠ΅ ΡΠΎΠ½Π° ΠΆΠ΅Π»ΡΠΎΠ³ΠΎ) ΠΈ 15% ΡΠ΅ΠΌΠ½ΡΠ΅. ΠΠΌ Π»Π΅Π³ΡΠ΅ Π²ΡΠ΅Π³ΠΎ Π΄Π΅Π»Π°ΡΡ Π°ΠΊΡΠ΅Π½ΡΡ ΠΈ ΡΠ°ΡΠΏΡΠ΅Π΄Π΅Π»Π΅Π½ΠΈΡ. ΠΠ°ΠΏΡΠΈΠΌΠ΅Ρ, Π΄ΠΈΠ²Π°Π½ ΠΈ ΡΡΠΎΡΡ ΠΌΠΎΠ³ΡΡ Π±ΡΡΡ ΡΠ΅ΡΠ½ΡΠΌΠΈ ΠΈΠ»ΠΈ ΡΠ΅ΠΌΠ½ΠΎ-ΡΠΈΠ½ΠΈΠΌΠΈ.
ΠΠ°ΡΠΈΠ°Π½ΡΡ ΠΏΠ»Π°Π½ΠΈΡΠΎΠ²ΠΊΠΈ ΠΊΠ²Π°ΡΡΠΈΡΡ-ΡΡΡΠ΄ΠΈΠΈ
ΠΠΈΠ·Π°ΠΉΠ½ Ρ ΠΎΠ΄Π½ΠΈΠΌ ΠΎΠΊΠ½ΠΎΠΌ
ΠΠ»Π°Π½ΠΈΡΠΎΠ²ΠΊΠ° ΠΊΠ²Π°ΡΡΠΈΡΡ ΡΡΡΠ΄ΠΈΠΈ Ρ ΠΎΠ΄Π½ΠΈΠΌ ΠΎΠΊΠ½ΠΎΠΌ ΠΏΡΠΎΠ±Π»Π΅ΠΌΠ°ΡΠΈΡΠ½Π° Π² ΠΎΠ±ΡΡΡΡΠΎΠΉΡΡΠ²Π΅, ΡΠ°ΠΊ ΠΊΠ°ΠΊ ΠΏΡΠΈΡ ΠΎΠ΄ΠΈΡΡΡ ΡΡΠΈΡΡΠ²Π°ΡΡ ΠΎΠ³ΡΠ°Π½ΠΈΡΠ΅Π½Π½ΠΎΠ΅ ΠΏΡΠΎΡΡΡΠ°Π½ΡΡΠ²ΠΎ ΠΈ ΠΌΠΈΠ½ΠΈΠΌΠ°Π»ΡΠ½ΠΎΠ΅ ΠΎΡΠ²Π΅ΡΠ΅Π½ΠΈΠ΅. Π₯ΠΎΡΠΎΡΠΎ, Π΅ΡΠ»ΠΈ ΠΊΠΎΠΌΠ½Π°ΡΠ° Π½Π°Ρ ΠΎΠ΄ΠΈΡΡΡ Π½Π° ΡΠΎΠ»Π½Π΅ΡΠ½ΠΎΠΉ ΡΡΠΎΡΠΎΠ½Π΅ ΠΈ Π±ΠΎΠ»ΡΡΡΡ ΡΠ°ΡΡΡ Π΄Π½Ρ ΡΠ²Π΅Ρ Π±ΡΠ΄Π΅Ρ ΠΏΠΎΡΡΡΠΏΠ°ΡΡ ΡΠΈΡΠΎΠΊΠΈΠΌ ΠΏΠΎΡΠΎΠΊΠΎΠΌ.
ΠΠ΄ΠΈΠ½ΡΡΠ²Π΅Π½Π½ΡΠΉ Π²Π΅ΡΠ½ΡΠΉ Π²ΡΡ ΠΎΠ΄ β ΠΌΠΈΠ½ΠΈΠΌΠ°Π»ΠΈΠ·ΠΌ. ΠΡΠΎΡ ΡΡΠΈΠ»Ρ ΠΏΡΠ΅Π΄ΠΏΠΎΠ»Π°Π³Π°Π΅Ρ ΡΠΌΠ΅ΡΠ΅Π½Π½ΡΡ Β«Π±Π΅Π΄Π½ΠΎΡΡΡΒ» Π΄ΠΈΠ·Π°ΠΉΠ½Π°, ΠΏΡΠΈ ΠΊΠΎΡΠΎΡΠΎΠΌ Π½Π΅Ρ Π½Π΅ΠΎΠ±Ρ ΠΎΠ΄ΠΈΠΌΠΎΡΡΠΈ ΠΏΠΎΠΊΡΠΏΠ°ΡΡ ΠΏΠΎΠ»Π½ΡΠΉ ΠΊΠΎΠΌΠΏΠ»Π΅ΠΊΡ ΠΌΠ΅Π±Π΅Π»ΠΈ, ΠΈΡΠΏΠΎΠ»ΡΠ·ΠΎΠ²Π°ΡΡ ΠΊΠ°ΠΊΠΈΠ΅-Π»ΠΈΠ±ΠΎ ΡΠ»Π΅ΠΌΠ΅Π½ΡΡ ΡΠΎΡΠΊΠΎΡΠΈ. ΠΡΠΎΡΡΠΎΠΉ ΠΈΠ½ΡΠ΅ΡΡΠ΅Ρ, Π±Π΅Π· Π»ΠΎΡΠΊΠ° ΠΈ Π±Π»Π΅ΡΠΊΠ°. ΠΠΎΠ»Π΅Π΅ ΡΠΎΠ³ΠΎ, ΠΎΠ½ ΠΏΠΎΠ·Π²ΠΎΠ»ΡΠ΅Ρ ΡΠ²Π΅Π»ΠΈΡΠΈΡΡ ΠΏΡΠΎΡΡΡΠ°Π½ΡΡΠ²ΠΎ, ΠΊΠ°ΠΊ ΡΠΈΠ·ΠΈΡΠ΅ΡΠΊΠΈ, ΡΠ°ΠΊ ΠΈ Π²ΠΈΠ·ΡΠ°Π»ΡΠ½ΠΎ. Π’Π°ΠΊ ΠΊΠ°ΠΊ Π½Π΅ Π½ΡΠΆΠ½ΠΎ ΠΏΡΠΎΠΈΠ·Π²ΠΎΠ΄ΠΈΡΡ ΠΌΠ΅Π±Π΅Π»ΠΈΡΠΎΠ²Π°Π½ΠΈΠ΅, ΠΌΠ΅ΡΡΠ° ΡΡΠ°Π½ΠΎΠ²ΠΈΡΡΡ Π±ΠΎΠ»ΡΡΠ΅, Π° ΡΠ²Π΅ΡΠ»ΡΠΉ ΠΈΠ½ΡΠ΅ΡΡΠ΅Ρ Π·ΡΠΈΡΠ΅Π»ΡΠ½ΠΎ Π΄Π΅Π»Π°Π΅Ρ ΠΊΠΎΠΌΠ½Π°ΡΡ ΠΏΡΠΎΡΡΠΎΡΠ½Π΅Π΅.
Π ΡΡΠΎΠΌ ΡΠ»ΡΡΠ°Π΅ Π·ΠΎΠ½ΠΈΡΠΎΠ²Π°Π½ΠΈΠ΅ Π½Π΅ Π½ΡΠΆΠ½ΠΎ. ΠΠΎΡΡΠ°ΡΠΎΡΠ½ΠΎ ΠΎΡΠ²ΠΎΠ±ΠΎΠ΄ΠΈΡΡ ΠΊΠΎΠΌΠ½Π°ΡΡ ΠΈ ΡΠ΄Π΅Π»Π°ΡΡ Π΅Π΅ ΠΏΡΠΎΡΡΠΎΡΠ½Π΅Π΅. ΠΡΠΎΠΌΠ΅ ΡΡΠΎΠ³ΠΎ, ΡΠ΅ΠΊΠΎΠΌΠ΅Π½Π΄ΡΠ΅ΡΡΡ Π½Π°ΠΏΠΎΠ»Π½ΠΈΡΡ ΠΊΠΎΠΌΠ½Π°ΡΡ ΠΈΡΠΊΡΡΡΡΠ²Π΅Π½Π½ΡΠΌ ΡΠ²Π΅ΡΠΎΠΌ. ΠΠ»Ρ ΠΌΠΈΠ½ΠΈΠΌΠ°Π»ΠΈΠ·ΠΌΠ° ΠΏΠΎΠ΄Ρ ΠΎΠ΄ΡΡ ΡΠΎΡΠ΅ΡΠ½ΡΠ΅ ΡΠ²Π΅ΡΠΈΠ»ΡΠ½ΠΈΠΊΠΈ. ΠΠ½ΠΈ Π²ΠΎΠΎΠ±ΡΠ΅ Π½Π΅ Π·Π°Π½ΠΈΠΌΠ°ΡΡ ΠΌΠ΅ΡΡΠ° ΠΈ Π΄Π°ΡΡ ΡΠΎΠ²Π½ΡΠΉ Π΄Π½Π΅Π²Π½ΠΎΠΉ ΡΠ²Π΅Ρ.
Π Π΅ΠΌΠΎΠ½Ρ Π² ΡΡΡΠ΄ΠΈΠΈ Π΄ΠΎΠ»ΠΆΠ΅Π½ Π±ΡΡΡ ΡΠ°ΠΌΡΠΌ ΠΏΡΠΎΡΡΡΠΌ. ΠΡΠ΄Π΅Π»ΠΊΠ° ΠΌΠΈΠ½ΠΈΠΌΠ°Π»ΡΠ½Π°Ρ, ΠΌΠ°ΠΊΡΠΈΠΌΡΠΌ β Π±Π΅Π»ΡΠ΅ ΠΎΠ±ΠΎΠΈ. ΠΡΠ±ΡΠ΅ Π½ΠΈΡΠΈ ΠΌΠΎΠ³ΡΡ ΠΈΡΠΏΠΎΠ»ΡΠ·ΠΎΠ²Π°ΡΡΡΡ Ρ ΡΠΌΠΎΠΌ, Π½Π°ΠΏΡΠΈΠΌΠ΅Ρ, Π΄Π»Ρ Π²ΡΡΠ°ΡΠΈΠ²Π°Π½ΠΈΡ ΡΠ°ΡΡΠ΅Π½ΠΈΠΉ. Π¦Π²Π΅ΡΠ° ΡΠ²Π΅ΡΠ»ΡΠ΅, ΡΡΠΎΠ±Ρ Π΄ΠΎΠΏΠΎΠ»Π½ΠΈΡΠ΅Π»ΡΠ½ΠΎ ΡΠ²Π΅Π»ΠΈΡΠΈΡΡ ΠΊΠΎΠΌΠ½Π°ΡΡ.
Π ΠΊΠ°ΡΠ΅ΡΡΠ²Π΅ ΡΠΊΠ°ΡΠΎΠ² ΠΌΠΎΠ³ΡΡ ΠΏΡΠΈΠΌΠ΅Π½ΡΡΡΡΡ:
- ΠΠΎΠ΄Π²Π΅ΡΠ½ΡΠ΅ ΠΏΠΎΠ»ΠΊΠΈ. Π ΠΎΡΠ»ΠΈΡΠΈΠ΅ ΠΎΡ ΡΠΊΠ°ΡΠΎΠ², ΠΎΡΠ²ΠΎΠ±ΠΎΠΆΠ΄Π°ΡΡ ΠΊΠΎΠΌΠ½Π°ΡΡ ΠΎΡ Π»ΠΈΡΠ½Π΅Π³ΠΎ ΠΌΡΡΠΎΡΠ°, Π·Π°ΡΡΠ°Π²Π»ΡΡΡ ΠΈΡΠΏΠΎΠ»ΡΠ·ΠΎΠ²Π°ΡΡ ΠΌΠΈΠ½ΠΈΠΌΡΠΌ Π²Π΅ΡΠ΅ΠΉ.
- Π―ΡΠΈΠΊΠΈ Π² ΠΊΡΠΎΠ²Π°ΡΠΈ. ΠΡΡΡΠ΅, Π΅ΡΠ»ΠΈ Π±Ρ Π»ΠΎΠΆΠ΅ ΠΈΠΌΠ΅Π»ΠΎ ΡΠΏΠ΅ΡΠΈΠ°Π»ΡΠ½ΡΠ΅ ΠΏΠΎΠ΄ΠΊΡΠΎΠ²Π°ΡΠ½ΡΠ΅ ΡΡΠΈΠΊΠΈ, ΠΊΠΎΡΠΎΡΡΠ΅ ΠΏΠΎΠ·Π²ΠΎΠ»ΡΡ Ρ ΡΠ°Π½ΠΈΡΡ ΠΎΠ΄Π΅ΠΆΠ΄Ρ, ΠΏΠΎΡΡΠ΅Π»ΡΠ½ΠΎΠ΅ Π±Π΅Π»ΡΠ΅ ΠΈ Π±ΡΡΠΎΠ²ΡΡ Ρ ΠΈΠΌΠΈΡ.
- ΠΠΎΠΌΠΎΠ΄Ρ. ΠΡΠ»ΠΈΡΠ½Π°Ρ Π°Π»ΡΡΠ΅ΡΠ½Π°ΡΠΈΠ²Π° ΡΠΊΠ°ΡΠ°ΠΌ. ΠΡΠ΅Π½Ρ Π²ΠΌΠ΅ΡΡΠΈΡΠ΅Π»ΡΠ½ΡΠ΅, Π½ΠΎ ΠΏΡΠΈ ΡΡΠΎΠΌ Π·Π°Π½ΠΈΠΌΠ°ΡΡ Π² ΡΡΠΎΠ΅ ΠΌΠ΅Π½ΡΡΠ΅ ΠΌΠ΅ΡΡΠ°.
Π‘ΡΡΠ΄ΠΈΡ 23 ΠΊΠ² ΠΌ ΠΈ ΠΌΠ΅Π½ΡΡΠ΅ Π»Π΅Π³ΠΊΠΎ ΡΠ²Π΅Π»ΠΈΡΠΈΠ²Π°ΡΡΡΡ, Π΅ΡΠ»ΠΈ Π΄ΠΎΠ±Π°Π²ΠΈΡΡ Π·Π΅ΡΠΊΠ°Π». Π ΠΌΠΈΠ½ΠΈΠΌΠ°Π»ΠΈΠ·ΠΌΠ΅ Π½Π° Π½ΠΈΡ Π½Π΅Ρ ΡΠ°Π±Ρ ΠΈ ΠΏΠΎΡΡΠΎΠΌΡ ΠΌΠΎΠΆΠ½ΠΎ ΠΏΡΠΈΠΌΠ΅Π½ΡΡΡ Π² Π»ΡΠ±ΠΎΠΌ ΠΊΠΎΠ»ΠΈΡΠ΅ΡΡΠ²Π΅.
Π‘ΡΡΠ΄ΠΈΡ-ΠΊΡΡ Π½Ρ
ΠΡΡ Π½ΠΈ Π² ΠΊΠ²Π°ΡΡΠΈΡΠ΅ ΡΠ°ΡΡΠΎ ΡΠΎΠ΅Π΄ΠΈΠ½ΡΡΡΡΡ Ρ Π³ΠΎΡΡΠΈΠ½ΠΎΠΉ, Ρ ΠΏΠΎΠΌΠΎΡΡΡ ΡΠ½ΠΎΡΠ° ΠΏΠ΅ΡΠ΅Π³ΠΎΡΠΎΠ΄ΠΊΠΈ. Π ΡΡΠΎΠΌ ΡΠ»ΡΡΠ°Π΅ ΡΠ΅Π°Π»ΡΠ½ΠΎ ΡΠΎΠ·Π΄Π°ΡΡ ΠΊΠΎΠΌΡΠΎΡΡΠ½ΠΎΠ΅ ΠΏΡΠΎΡΡΡΠ°Π½ΡΡΠ²ΠΎ. ΠΡΠΈ ΡΡΠΎΠΌ ΡΡΠΎΠ»ΠΎΠ²Π°Ρ ΠΎΡΠ»ΠΈΡΠ½ΠΎ ΠΈΠ½ΡΠ΅Π³ΡΠΈΡΡΠ΅ΡΡΡ Π² Π·Π°Π», Π½Π΅ ΡΠ΅ΡΡΡ ΡΠ²ΠΎΠΈΡ ΠΊΠ°ΡΠ΅ΡΡΠ².
ΠΡΠΎΠ΅ΠΊΡ ΠΊΠ²Π°ΡΡΠΈΡΡ ΡΡΡΠ΄ΠΈΠΈ Ρ ΠΊΡΡ Π½Π΅ΠΉ ΠΏΠΎΠ΄ΡΠ°Π·ΡΠΌΠ΅Π²Π°Π΅Ρ ΡΠΎΠ±Π»ΡΠ΄Π΅Π½ΠΈΠ΅ Π½Π΅ΠΊΠΎΡΠΎΡΡΡ ΠΏΡΠ°Π²ΠΈΠ»:
- ΠΡΡΡΠ΅ Π²ΡΠ΅Π³ΠΎ Π²ΠΎΡΠΏΠΎΠ»ΡΠ·ΠΎΠ²Π°ΡΡΡΡ Π΅ΡΡΠ΅ΡΡΠ²Π΅Π½Π½ΠΎΠΉ ΠΏΠ΅ΡΠ΅Π³ΠΎΡΠΎΠ΄ΠΊΠΎΠΉ, ΠΊΠΎΡΠΎΡΠ°Ρ ΠΎΡΡΠ°Π΅ΡΡΡ ΠΏΠΎΡΠ»Π΅ ΡΠ½ΠΎΡΠ° ΡΡΠ΅Π½ΠΊΠΈ. ΠΠ΄Π½Π°ΠΊΠΎ ΠΌΠΎΠΆΠ½ΠΎ ΡΠΎΠ·Π΄Π°ΡΡ Π΅Π΅ ΠΈΡΠΊΡΡΡΡΠ²Π΅Π½Π½ΠΎ. Π‘Π°ΠΌΡΠΉ ΠΏΡΠΎΡΡΠΎΠΉ ΡΠΏΠΎΡΠΎΠ± β Π±Π°ΡΠ½Π°Ρ ΡΡΠΎΠΉΠΊΠ° ΠΈΠ»ΠΈ ΠΎΡΡΡΠΎΠ²ΠΎΠΊ. ΠΡΠΎ ΠΎΠ΄Π½ΠΎΠ²ΡΠ΅ΠΌΠ΅Π½Π½ΠΎ ΠΈ Π³ΡΠ°Π½ΠΈΡΠ°, ΠΈ ΡΠ΄ΠΎΠ±Π½Π°Ρ ΡΠ°ΡΡΡ ΠΌΠ΅Π±Π΅Π»ΡΠ½ΠΎΠ³ΠΎ Π³Π°ΡΠ½ΠΈΡΡΡΠ°.
- Π ΠΊΠ²Π°ΡΡΠΈΡΠ΅ Π΄ΠΎΠ»ΠΆΠ½ΠΎ Π±ΡΡΡ ΠΌΠΈΠ½ΠΈΠΌΡΠΌ Π²Π΅ΡΠ΅ΠΉ ΠΈ ΠΌΠ΅Π±Π΅Π»ΠΈ. ΠΡΠΎ Π½Π΅ ΠΏΠΎΠ·Π²ΠΎΠ»ΠΈΡ Π·Π°Ρ Π»Π°ΠΌΠΈΡΡ ΠΏΠ»ΠΎΡΠ°Π΄Ρ, ΡΡΠΎ ΠΎΡΠ΅Π½Ρ Π²Π°ΠΆΠ½ΠΎ ΠΏΡΠΈ ΠΎΠ³ΡΠ°Π½ΠΈΡΠ΅Π½Π½ΠΎΠΌ ΠΏΡΠΎΡΡΡΠ°Π½ΡΡΠ²Π΅. ΠΠΎ Π΄ΠΈΠ·Π°ΠΉΠ½ ΡΡΡΠ΄ΠΈΠΈ 30 ΠΊΠ² ΠΌ ΠΈ Π±ΠΎΠ»Π΅Π΅ ΠΌΠΎΠΆΠ΅Ρ ΠΏΡΠ΅Π΄ΠΏΠΎΠ»Π°Π³Π°ΡΡ Π΄Π°ΠΆΠ΅ ΠΏΠΎΠ»Π½ΠΎΡΠ°Π·ΠΌΠ΅ΡΠ½ΡΠ΅ ΠΊΡΡ ΠΎΠ½Π½ΡΠ΅ Π³Π°ΡΠ½ΠΈΡΡΡΡ.
- ΠΠΎ ΠΌΠ°ΠΊΡΠΈΠΌΡΠΌΡ Π½ΡΠΆΠ½ΠΎ ΠΈΡΠΏΠΎΠ»ΡΠ·ΠΎΠ²Π°ΡΡ Π½Π΅ ΡΠΈΡΠΎΡΡ, Π° Π²ΡΡΠΎΡΡ. ΠΠ΅ ΡΡΠΎΠΈΡ Π·Π°Π±ΡΠ²Π°ΡΡ ΠΏΡΠΎ ΡΠ²ΠΎΠ±ΠΎΠ΄Π½ΠΎΠ΅ ΠΏΡΠΎΡΡΡΠ°Π½ΡΡΠ²ΠΎ, ΠΊΠΎΡΠΎΡΠΎΠ΅ Π½Π°Ρ ΠΎΠ΄ΠΈΡΡΡ Π½Π° ΡΡΠ΅Π½Π°Ρ . ΠΠΈΠ·Π°ΠΉΠ½ ΠΊΡΡ Π½ΠΈ ΠΌΠΎΠΆΠ΅Ρ ΠΏΠΎΠ΄ΡΠ°Π·ΡΠΌΠ΅Π²Π°ΡΡ Π±Π΅ΡΡΠΈΡΠ»Π΅Π½Π½ΠΎΠ΅ ΠΊΠΎΠ»ΠΈΡΠ΅ΡΡΠ²ΠΎ Π½Π°ΡΡΠ΅Π½Π½ΡΡ ΠΏΠΎΠ»ΠΎΡΠ΅ΠΊ ΠΎΡΠΊΡΡΡΠΎΠ³ΠΎ ΡΠΈΠΏΠ°. ΠΠ½ΠΈ ΠΏΠΎΡΡΠΈ Π½Π΅ Π·Π°Π½ΠΈΠΌΠ°ΡΡ ΠΌΠ΅ΡΡΠ° ΠΈ ΠΏΡΠΈ ΡΡΠΎΠΌ ΠΏΠΎΠ·Π²ΠΎΠ»ΡΡΡ ΡΠ°Π·ΠΌΠ΅ΡΡΠΈΡΡ ΠΊΠ°ΡΡΡΡΠ»ΠΈ, ΡΠ°ΡΠ΅Π»ΠΊΠΈ ΠΈ ΠΏΡΠΎΠ΄ΡΠΊΡΡ.
Π‘ΡΡΠ΄ΠΈΡ-ΡΠΏΠ°Π»ΡΠ½Ρ
ΠΡΠΎΠ΅ΠΊΡ ΡΡΡΠ΄ΠΈΠΈ ΡΠΏΠ°Π»ΡΠ½ΠΈ ΠΏΡΠΎΡΡ, Π΅ΡΠ»ΠΈ ΠΏΡΠΈΠ΄Π΅ΡΠΆΠΈΠ²Π°ΡΡΡΡ ΡΠ»Π΅Π΄ΡΡΡΠΈΡ ΠΏΡΠ°Π²ΠΈΠ»:
- ΠΠ³ΡΠ°Π½ΠΈΡΠ΅Π½ΠΈΠ΅ ΡΠΏΠ°Π»ΡΠ½ΠΎΠ³ΠΎ ΠΌΠ΅ΡΡΠ°. ΠΠ΅ Π½ΡΠΆΠ½ΠΎ ΠΎΡΡΠ°Π²Π»ΡΡΡ ΠΎΡΠ΅Π½Ρ ΠΌΠ½ΠΎΠ³ΠΎ ΠΏΡΠΎΡΡΡΠ°Π½ΡΡΠ²Π° Π·Π° ΠΊΡΠΎΠ²Π°ΡΡΡ. ΠΠ΅ Π»ΡΡΡΠ΅ ΡΠ΄Π΅Π»Π°ΡΡ ΠΎΠ³ΡΠ°Π½ΠΈΡΠ΅Π½Π½ΠΎΠΉ ΠΎΠ΄Π½ΠΎΠΉ ΠΊΡΠΎΠ²Π°ΡΡΡ ΠΈΠ»ΠΈ Π²ΠΎΠΎΠ±ΡΠ΅ ΡΠ΄Π΅Π»Π°ΡΡ Π΅Π΅ ΡΡΠ°Π½ΡΡΠΎΡΠΌΠ΅ΡΠ½ΠΎΠΉ. ΠΡΠΎΡΠΎΠΉ Π²Π°ΡΠΈΠ°Π½Ρ ΠΏΠΎΠ·Π²ΠΎΠ»ΠΈΡ ΠΎΡΡΠ°Π²ΠΈΡΡ Π²ΡΠ΅ ΠΏΠΎΠΌΠ΅ΡΠ΅Π½ΠΈΠ΅ Π΄Π»Ρ ΠΎΡΠ΄ΡΡ Π° ΠΈ ΡΠ°Π·Π²Π»Π΅ΡΠ΅Π½ΠΈΠΉ. ΠΡΠΎΠ±Π΅Π½Π½ΠΎ ΡΡΠΎ ΠΏΠΎΠ»Π΅Π·Π½ΠΎ Π² ΡΠΎΠΌ ΡΠ»ΡΡΠ°Π΅, Π΅ΡΠ»ΠΈ Π² ΠΊΠ²Π°ΡΡΠΈΡΠ΅ ΠΆΠΈΠ²ΡΡ Π΄Π΅ΡΠΈ.
- ΠΠ³ΡΠ°ΠΆΠ΄Π΅Π½ΠΈΠ΅ ΡΡΠ΅Π½ΠΎΠΉ. ΠΠ΅ ΡΡΠΎΠΈΡ ΠΌΠ΅ΡΠ°ΡΡ Π³ΠΎΡΡΠΈΠ½ΡΡ ΠΈ ΡΠΏΠ°Π»ΡΠ½Ρ, ΡΠ°ΠΊ ΠΊΠ°ΠΊ ΠΏΠΎΠ»ΡΡΠ΅Π½Π½Π°Ρ ΠΊΠΎΠΌΠ½Π°ΡΠ° ΠΏΠΎΡΠ΅ΡΡΠ΅Ρ ΠΊΠ°ΡΠ΅ΡΡΠ²ΠΎ ΠΏΠ΅ΡΠ²ΠΎΠ³ΠΎ ΠΈ Π²ΡΠΎΡΠΎΠ³ΠΎ. Π Π΅ΠΌΠΎΠ½Ρ ΠΊΠ²Π°ΡΡΠΈΡΡ ΡΡΡΠ΄ΠΈΠΈ Π½Π΅ ΡΡΠ΅Π±ΡΠ΅Ρ Π²ΠΎΠ·Π²Π΅Π΄Π΅Π½ΠΈΡ ΡΡΠ½Π΄Π°ΠΌΠ΅Π½ΡΠ°Π»ΡΠ½ΠΎΠΉ ΠΏΠ΅ΡΠ΅Π³ΠΎΡΠΎΠ΄ΠΊΠΈ. ΠΠΎΡΡΠ°ΡΠΎΡΠ½ΠΎ Π½Π΅Π±ΠΎΠ»ΡΡΠΎΠ³ΠΎ ΠΏΡΠΎΡΡΠ΅Π½ΠΊΠ° ΠΈΠ»ΠΈ Π΄Π°ΠΆΠ΅ ΡΡΠ΅ΠΊΠ»ΡΠ½Π½ΠΎΠΉ ΠΈΠ·Π³ΠΎΡΠΎΠ΄ΠΈ. ΠΠ΅ Π±ΡΠ΄Π΅Ρ Ρ Π²Π°ΡΠ°ΡΡ Π΄Π»Ρ ΠΏΠΎΠ»Π½ΠΎΡΠ΅Π½Π½ΠΎΠ³ΠΎ ΠΎΡΠ΄ΡΡ Π° ΠΈ Π΄Π°ΠΆΠ΅ ΠΎΡΠ΄Π΅Π»ΡΠ½ΠΎΠ³ΠΎ ΡΠ½Π°.
- ΠΠΈΠ²Π°Π½ ΠΊΡΠΎΠ²Π°ΡΡ. Π Π°Π΄ΠΈΠΊΠ°Π»ΡΠ½ΡΠΌ ΡΠ΅ΡΠ΅Π½ΠΈΠ΅ΠΌ ΠΏΡΠΎΠ±Π»Π΅ΠΌΡ Π²ΡΡΡΡΠΏΠ°Π΅Ρ Π·Π°ΠΌΠ΅Π½Π° ΠΊΡΠΎΠ²Π°ΡΠΈ ΠΈ Π΄ΠΈΠ²Π°Π½Π° Π½Π° ΠΈΡ ΡΠΈΠΌΠ±ΠΈΠΎΠ·. ΠΡΠΎ ΠΏΠΎΠ·Π²ΠΎΠ»ΠΈΡ ΠΎΠ΄Π½ΠΎΠ²ΡΠ΅ΠΌΠ΅Π½Π½ΠΎ ΠΈ ΡΠΏΠ°ΡΡ, ΠΈ ΠΎΡΠ΄ΡΡ Π°ΡΡ.
- ΠΡΡΡΠΎΠ΅Π½Π½Π°Ρ ΠΊΡΠΎΠ²Π°ΡΡ. ΠΡΠ»ΠΈ Π΅ΡΡΡ Π½ΠΈΡΠ°, ΠΌΠΎΠΆΠ½ΠΎ ΠΏΠΎΡΡΠ°Π²ΠΈΡΡ ΠΊΡΠΎΠ²Π°ΡΡ ΡΡΠ΄Π°. ΠΠ΅ΡΠΎΠ΄ Π²ΡΡΡΠΎΠ΅Π½Π½ΠΎΠΉ ΠΌΠ΅Π±Π΅Π»ΠΈ ΠΏΠΎΠ·Π²ΠΎΠ»ΡΠ΅Ρ ΡΠΎΡ ΡΠ°Π½ΡΡΡ ΠΌΠ΅ΡΡΠΎ, Π½ΠΎ Π² ΠΊΠ²Π°ΡΡΠΈΡΠ΅ ΠΏΠΎΡΠ²ΠΈΡΡΡ ΠΏΠΎΠ»Π½ΠΎΡΠ΅Π½Π½ΠΎΠ΅ ΡΠΏΠ°Π»ΡΠ½ΠΎΠ΅ ΠΌΠ΅ΡΡΠΎ.
ΠΠΎΡΠΌΠΎΡΡΠ΅ΡΡ ΡΠΎΡΠΎ, ΠΊΠ°ΠΊ Π²ΡΠ³Π»ΡΠ΄ΠΈΡ ΠΈΠ½ΡΠ΅ΡΡΠ΅Ρ ΠΈ ΠΏΠ»Π°Π½ΠΈΡΠΎΠ²ΠΊΠ° ΠΊΠ²Π°ΡΡΠΈΡΡ ΡΡΡΠ΄ΠΈΠΈ Β«ΡΠΏΠ°Π»ΡΠ½Ρ + Π³ΠΎΡΡΠΈΠ½Π°ΡΒ» ΠΌΠΎΠΆΠ½ΠΎ Π½ΠΈΠΆΠ΅.
ΠΠΈΠ·Π°ΠΉΠ½ ΡΡΡΠ΄ΠΈΠΈ-Π·Π°Π»Π°
ΠΠ½ΡΠ΅ΡΡΠ΅Ρ ΠΊΠ²Π°ΡΡΠΈΡΡ Ρ ΠΎΡΠ½ΠΎΠ²Π½ΠΎΠΉ Π³ΠΎΡΡΠΈΠ½ΠΎΠΉ ΠΌΠΎΠΆΠ΅Ρ ΠΎΡΠ½ΠΎΠ²ΡΠ²Π°ΡΡΡΡ Π½Π° ΡΡΠ»ΠΎΠ²Π½ΡΡ ΡΡΠ΅Π½Π°Ρ . Π‘Π°ΠΌΡΠΉ ΠΏΡΠΎΡΡΠΎΠΉ ΡΠΏΠΎΡΠΎΠ± ΠΎΡΠ΄Π΅Π»ΠΈΡΡ Π΅Π΅ β Π΄ΠΈΠ²Π°Π½, ΡΠ°ΡΠΏΠΎΠ»ΠΎΠΆΠ΅Π½Π½ΡΠΉ ΡΠΏΠΈΠ½ΠΊΠΎΠΉ ΠΊΠΎ Π²ΡΠ΅ΠΉ ΠΎΡΡΠ°Π»ΡΠ½ΠΎΠΉ ΠΊΠΎΠΌΠ½Π°ΡΠ΅.
ΠΠΎΡΠΌΠΎΡΡΠΈΡΠ΅ Π΅ΡΠ΅ Π·Π΄Π΅ΡΡ:Π’Π°ΠΊΠΆΠ΅ ΡΠ°ΡΡΠΎ ΠΏΡΠΈΠΌΠ΅Π½ΡΠ΅ΡΡΡ ΠΈ ΠΎΡΠ²Π΅ΡΠ΅Π½ΠΈΠ΅. Π Π³ΠΎΡΡΠΈΠ½ΠΎΠΉ ΠΎΠ½ΠΎ Π΄ΠΎΠ»ΠΆΠ½ΠΎ Π±ΡΡΡ ΡΠ°ΠΌΡΠΌ Π½Π°ΡΡΡΠ΅Π½Π½ΡΠΌ ΠΈ ΡΡΠΊΠΈΠΌ. ΠΡΡΡΠ΅ Π²ΡΠ΅Π³ΠΎ ΠΏΠΎΠ΄Ρ ΠΎΠ΄ΡΡ Π±ΠΎΠ»ΡΡΠΈΠ΅ Π»ΡΡΡΡΡ.
Π ΠΌΠ΅ΡΡΠ°Ρ ΠΏΠ΅ΡΠ΅Ρ ΠΎΠ΄Π° ΠΎΡ ΠΎΠ΄Π½ΠΎΠΉ Π·ΠΎΠ½Ρ ΠΊ Π΄ΡΡΠ³ΠΎΠΉ ΠΏΡΠΈΠ²Π΅ΡΡΡΠ²ΡΡΡΡΡ:
- ΠΠ΅ΡΠΊΠ°Π»ΡΠ½ΡΠ΅ ΡΡΠ΅Π½ΠΊΠΈ;
- ΠΠ΅Π±Π΅Π»Ρ;
- Π¨ΡΠΎΡΡ ΠΈ ΡΠΈΡΠΌΡ.
ΠΠΊΠΎΠ½ΠΎΠΌΠΈΡΡ ΠΌΠ΅ΡΡΠΎ Π² Π·Π°Π»Π΅ ΠΌΠΎΠΆΠ½ΠΎ Ρ ΠΏΠΎΠΌΠΎΡΡΡ ΠΊΡΠΎΠ½ΡΡΠ΅ΠΉΠ½Π° Π΄Π»Ρ ΡΠ΅Π»Π΅Π²ΠΈΠ·ΠΎΡΠ° ΠΈ Π»ΠΈΠΊΠ²ΠΈΠ΄Π°ΡΠΈΠΈ Π³Π°ΡΠ½ΠΈΡΡΡΠ°. ΠΡΠΈ ΡΠΎΠ²ΠΌΠ΅ΡΠ΅Π½ΠΈΠΈ Ρ ΠΏΡΠΈΡ ΠΎΠΆΠ΅ΠΉ, Π±Π΅ΡΠΏΡΠΎΠΈΠ³ΡΡΡΠ½ΡΠΉ Π²Π°ΡΠΈΠ°Π½Ρ β Π½ΠΈΠ·ΠΊΠ°Ρ ΠΌΠ΅Π±Π΅Π»Ρ. Π’ΡΠΌΠ±ΠΎΡΠΊΠΈ ΠΈ ΠΊΠΎΠΌΠΎΠ΄Ρ Π½Π°ΠΌΠ½ΠΎΠ³ΠΎ ΠΌΠ΅Π½ΡΡΠ΅ ΡΠΊΠ°ΡΠΎΠ², Π½ΠΎ ΠΏΡΠΈ ΡΡΠΎΠΌ ΡΠ΅Π°Π»ΡΠ½ΠΎ ΡΠΊΠΎΠ½ΠΎΠΌΡΡ ΠΌΠ΅ΡΡΠΎ ΠΈ ΠΏΠΎΠ·Π²ΠΎΠ»ΡΡΡ ΠΎΡΠ»ΠΈΡΠ½ΠΎ ΠΎΡΠ΄Π΅Π»ΡΡΡ Π³ΠΎΡΡΠΈΠ½ΡΡ ΡΠ°ΡΡΡ.
ΠΠΎΡΠΌΠΎΡΡΠ΅ΡΡΒ ΡΠΎΡΠΎ Π΄ΠΈΠ·Π°ΠΉΠ½Π° ΠΊΠ²Π°ΡΡΠΈΡΡ ΡΡΡΠ΄ΠΈΠΈ 25 ΠΊΠ² ΠΌ ΠΌΠΎΠΆΠ½ΠΎ Π½ΠΈΠΆΠ΅.
Π‘Π΅ΠΊΡΠ΅ΡΡ ΠΏΡΠ°Π²ΠΈΠ»ΡΠ½ΠΎΠ³ΠΎ Π·ΠΎΠ½ΠΈΡΠΎΠ²Π°Π½ΠΈΡ
ΠΠΈΠ·Π°ΠΉΠ½ ΠΌΠ°Π»Π΅Π½ΡΠΊΠΎΠΉ ΠΊΠ²Π°ΡΡΠΈΡΡ ΡΡΡΠ΄ΠΈΠΈ ΡΠ»ΠΎΠΆΠ΅Π½ ΡΠ΅ΠΌ, ΡΡΠΎ Π΄Π΅Π»Π°Π΅Ρ ΠΏΡΠΎΡΡΡΠ°Π½ΡΡΠ²ΠΎ Π½Π΅ΡΠΈΡΡΠ΅ΠΌΠ°ΡΠΈΡΠ½ΡΠΌ. ΠΠ·-Π·Π° ΡΠ°ΠΊΠΎΠ³ΠΎ Π½Π°ΡΡΡΠ΅Π½ΠΈΡ, ΡΠ»ΠΎΠΆΠ½ΠΎ ΠΏΠΎΠ΅ΡΡΡ, ΠΎΡΠ΄ΠΎΡ Π½ΡΡΡ ΠΈΠ»ΠΈ ΠΏΠΎΡΠΈΡΠ°ΡΡ ΠΊΠ½ΠΈΠ³Ρ, ΡΠ°ΠΊ ΠΊΠ°ΠΊ ΠΎΠ΄Π½ΠΎ ΠΈ ΡΠΎΠΆΠ΅ ΠΌΠ΅ΡΡΠΎ Π²ΡΡΡΡΠΏΠ°Π΅Ρ Π·ΠΎΠ½ΠΎΠΉ Π΄Π»Ρ Π²ΡΠ΅Ρ ΡΠ°Π·Π²Π»Π΅ΡΠ΅Π½ΠΈΠΉ.
ΠΠΎΡΠΌΠΎΡΡΠΈΡΠ΅ Π΅ΡΠ΅ Π·Π΄Π΅ΡΡ:ΠΠΎΠ½ΠΈΡΠΎΠ²Π°Π½ΠΈΠ΅ ΡΠ΅ΡΠ°Π΅Ρ Π½Π΅Π΄ΠΎΡΡΠ°ΡΡ ΠΌΠ΅ΡΡΠ° ΠΈ ΠΏΠΎΠΌΠΎΠ³Π°Π΅Ρ ΡΠΎΠΊΡΠ°ΡΠΈΡΡ ΠΏΡΠΎΠ±Π»Π΅ΠΌΡ Ρ Π³ΡΠ°Π½ΠΈΡΠ°ΠΌΠΈ Π΄ΠΎΡΡΠ³Π° ΠΈ ΡΠ°Π±ΠΎΡΡ. Π£Π½ΠΈΠ²Π΅ΡΡΠ°Π»ΡΠ½ΡΠΉ Π΄ΠΈΠ·Π°ΠΉΠ½ ΠΏΡΠΎΠ΅ΠΊΡ Π½Π΅Π²ΠΎΠ·ΠΌΠΎΠΆΠ΅Π½ Π² ΠΏΡΠΈΠ½ΡΠΈΠΏΠ΅, ΡΠ°ΠΊ ΠΊΠ°ΠΊ ΠΊΠ²Π°ΡΡΠΈΡΡ Ρ ΠΎΠ΄Π½ΠΈΠΌ ΠΏΠ»Π°Π½ΠΎΠΌ ΠΌΠΎΠ³ΡΡ ΡΠΎΠ²Π΅ΡΡΠ΅Π½Π½ΠΎ ΠΏΠΎ ΡΠ°Π·Π½ΠΎΠΌΡ ΡΠΌΠΎΡΡΠ΅ΡΡΡΡ. Π’Π΅ΠΌ Π±ΠΎΠ»Π΅Π΅, ΡΡΠΎ ΠΊΠ°ΠΆΠ΄ΡΠΉ ΡΠ°ΠΌ Π΄Π»Ρ ΡΠ΅Π±Ρ Π²ΡΠ±ΠΈΡΠ°Π΅Ρ ΡΠ°Π·ΠΌΠ΅ΡΡ ΠΈ ΡΠΎΡΠΌΡ ΠΊΠΎΠΌΠ½Π°ΡΡ. ΠΠΎΠ³ΠΎ-ΡΠΎ Π±ΠΎΠ»ΡΡΠ΅ ΠΏΡΠΈΠ²Π»Π΅ΠΊΠ°Π΅Ρ ΠΏΡΠΎΡΡΠΎΡ ΠΈ ΡΠ²ΠΎΠ±ΠΎΠ΄Π°, ΠΏΠΎΡΡΠΎΠΌΡ Π·ΠΎΠ½ΠΈΡΠΎΠ²Π°Π½ΠΈΠ΅ Π΄ΠΎΠ»ΠΆΠ½ΠΎ Π±ΡΡΡ ΠΊΠΎΡΠΌΠ΅ΡΠΈΡΠ΅ΡΠΊΠΈΠΌ. ΠΡΡΠ³ΠΈΠΌ Π±ΡΠ΄Π΅Ρ ΡΠ΄ΠΎΠ±Π½Π΅Π΅ ΠΆΠΈΡΡ Π² ΡΠ΅ΡΠΊΠΎ ΡΠ°ΡΡΡΠ°Π²Π»Π΅Π½Π½ΡΡ Π³ΡΠ°Π½ΠΈΡΠ°Ρ .
Π ΠΊΠ²Π°ΡΡΠΈΡΠ΅ Π±Π΅Π· ΠΏΠ΅ΡΠ΅Π³ΠΎΡΠΎΠ΄ΠΎΠΊ ΠΈ Π΄Π°ΠΆΠ΅ Π½Π°ΠΌΠ΅ΠΊΠΎΠ² Π½Π° ΡΡΠ΅Π½Ρ, ΠΈΠ½ΡΠ΅ΡΡΠ΅Ρ ΡΡΡΠ΄ΠΈΠΈ ΠΌΠΎΠΆΠ΅Ρ Π΄Π΅Π»ΠΈΡΡΡΡ ΡΠ²Π΅ΡΠΎΠΌ. ΠΡΠΈ ΡΠ΅ΠΌ ΠΈ Π΅ΡΡΠ΅ΡΡΠ²Π΅Π½Π½ΡΠΌ, ΠΈ ΠΈΡΠΊΡΡΡΡΠ²Π΅Π½Π½ΡΠΌ.
ΠΠ»Ρ ΡΡΠΎΠ³ΠΎ ΡΡΡΠ°Π½Π°Π²Π»ΠΈΠ²Π°ΡΡΡΡ ΡΠ²Π΅ΡΠΈΠ»ΡΠ½ΠΈΠΊΠΈ ΡΠ°Π·Π½ΠΎΠ³ΠΎ ΡΠΈΠΏΠ° ΠΈ Π»Π°ΠΌΠΏΡ Ρ ΠΎΡΠ»ΠΈΡΠ°ΡΡΠ΅ΠΉΡΡ ΡΠ΅ΠΌΠΏΠ΅ΡΠ°ΡΡΡΠΎΠΉ ΡΠ²Π΅ΡΠ°. ΠΠΎΠ½Ρ Π±ΡΠ΄ΡΡ ΡΠΎΠ±Π»ΡΠ΄Π΅Π½Ρ, Π½ΠΎ ΡΠ°ΠΌΠΎ ΠΏΠΎΠΌΠ΅ΡΠ΅Π½ΠΈΠ΅ Π½Π΅ ΠΎΠ³ΡΠ°Π½ΠΈΡΠΈΠ²Π°Π΅ΡΡΡ Π½ΠΈΡΠ΅ΠΌ.
ΠΡΠΈ ΡΠ²Π΅ΡΠΎΠ²ΠΎΠΌ Π΄Π΅Π»Π΅Π½ΠΈΠΈ, Π»ΡΡΡΠ΅ ΡΠ°Π±ΠΎΡΠ°ΡΡ ΠΏΠΎ ΡΠ»Π΅Π΄ΡΡΡΠ΅ΠΉ ΡΡ Π΅ΠΌΠ΅:
- Π ΠΏΠ΅ΡΠ²ΡΡ ΠΎΡΠ΅ΡΠ΅Π΄Ρ ΠΎΡΠ΄Π΅Π»ΡΠ΅ΡΡΡ ΠΎΠ±Π΅Π΄Π΅Π½Π½Π°Ρ Π·ΠΎΠ½Π°. ΠΠ°Π΄ Π½Π΅ΠΉ ΡΡΡΠ°Π½Π°Π²Π»ΠΈΠ²Π°Π΅ΡΡΡ ΠΏΠΎΠ΄Π²Π΅ΡΠ½Π°Ρ Π»Π°ΠΌΠΏΠ° (ΠΊΠ°ΠΊ ΠΏΡΠ°Π²ΠΈΠ»ΠΎ, Π²ΡΠ±ΠΈΡΠ°ΡΡ ΠΎΡΠ΅Π½Ρ Π»Π΅Π³ΠΊΡΡ, ΠΏΡΠ°ΠΊΡΠΈΡΠ΅ΡΠΊΠΈ Π½Π΅Π·Π°ΠΌΠ΅ΡΠ½ΡΡ Π»ΡΡΡΡΡ). ΠΡΠ»ΠΈΠ½Π°ΡΠ½Π°Ρ ΡΠ°ΡΡΡ Π²ΡΠ΄Π΅Π»ΡΠ΅ΡΡΡ ΠΊΠ°ΠΏΡΡΠ»ΡΠ½ΡΠΌΠΈ Π»Π°ΠΌΠΏΠΎΡΠΊΠ°ΠΌΠΈ Ρ ΡΠ°ΡΡΠ΅ΠΈΠ²Π°ΡΡΠ΅ΠΉ ΠΊΠΎΠ»Π±ΠΎΠΉ. ΠΠ½ΠΈ Π΄Π°ΡΡ ΠΌΡΠ³ΠΊΠΈΠΉ ΠΈ ΡΠΈΡΠΎΠΊΠΈΠΉ Π»ΡΡ, ΠΎΡΠ²Π΅ΡΠ°ΡΡΠΈΠΉ Π²ΡΡ Π·ΠΎΠ½Ρ.
- Π‘ΠΏΠ°Π»ΡΠ½ΠΎΠ΅ ΠΌΠ΅ΡΡΠΎ Π²ΡΠ΄Π΅Π»ΡΠ΅ΠΌ Ρ ΠΏΠΎΠΌΠΎΡΡΡ ΡΠΎΡΠ΅ΡΠ½ΠΎΠ³ΠΎ ΠΎΡΠ²Π΅ΡΠ΅Π½ΠΈΡ Ρ Π±ΠΎΠ»ΡΡΠΎΠΉ ΠΏΠ°Π½Π΅Π»ΡΡ ΡΠ΅Π³ΡΠ»ΠΈΡΠΎΠ²ΠΊΠΈ ΡΠ²Π΅ΡΠ°. ΠΡΠΎ Π΄Π°ΡΡ Π²ΠΎΠ·ΠΌΠΎΠΆΠ½ΠΎΡΡΡ ΠΊΠΎΠ½ΡΡΠΎΠ»ΠΈΡΠΎΠ²Π°ΡΡ ΠΏΠΎΡΠΎΠΊ ΠΈ ΠΏΠΎΠ΄ΡΡΡΠ°ΠΈΠ²Π°ΡΡ Π΅Π³ΠΎ Π² Π·Π°Π²ΠΈΡΠΈΠΌΠΎΡΡΠΈ ΠΎΡ Π½Π°ΡΡΡΠΎΠ΅Π½ΠΈΡ. ΠΡΠΎΠ±Π΅Π½Π½ΠΎ ΡΡΠΎ ΠΏΠΎΠ»Π΅Π·Π½ΠΎ Π²ΠΎ Π²ΡΠ΅ΠΌΡ ΠΏΡΠΎΡΠΌΠΎΡΡΠ° ΡΠ΅ΡΠΈΠ°Π»ΠΎΠ² ΠΈΠ»ΠΈ ΡΠ°Π±ΠΎΡΡ.
- ΠΠ΅ΡΡΠΎ Π΄Π»Ρ ΡΡΠ΅Π½ΠΈΡ ΠΈ ΠΎΡΠ΄ΡΡ Π° (Π΄ΠΈΠ²Π°Π½ ΠΈΠ»ΠΈ ΠΊΡΠ΅ΡΠ»ΠΎ ΠΏΠ΅ΡΠ΅Π΄ ΡΠ΅Π»Π΅Π²ΠΈΠ·ΠΎΡΠΎΠΌ) ΠΌΠΎΠΆΠ½ΠΎ ΡΠ½Π°Π±Π΄ΠΈΡΡ ΡΠΎΡΡΠ΅ΡΠΎΠΌ ΠΈΠ»ΠΈ Π»Π°ΠΌΠΏΠΎΠΉ. Π’Π°ΠΊ ΠΏΠΎΠ»ΡΡΠΈΡΡΡ ΡΠΎΠ·Π΄Π°ΡΡ Π»Π΅Π³ΠΊΠΈΠΉ ΡΠ»Π΅Ρ Π±ΠΈΠ±Π»ΠΈΠΎΡΠ΅ΠΊΠΈ.
ΠΡΠΎΠΌΠ΅ ΡΠ²Π΅ΡΠ° Π·Π½Π°ΡΠ΅Π½ΠΈΠ΅ ΠΈΠΌΠ΅Π΅Ρ ΠΈ ΠΌΠ΅Π±Π΅Π»Ρ. Π’ΡΠ°Π΄ΠΈΡΠΈΠΎΠ½Π½ΠΎ Π² ΡΠ°Π·Π½ΡΡ ΠΊΠΎΠΌΠ½Π°ΡΠ°Ρ ΡΡΡΠ°Π½Π°Π²Π»ΠΈΠ²Π°Π΅ΡΡΡ ΠΊΠΎΠΌΠΏΠ»Π΅ΠΊΡ ΠΎΠΏΡΠ΅Π΄Π΅Π»Π΅Π½Π½ΠΎΠ³ΠΎ ΡΠΈΠΏΠ° Π΄Π»Ρ ΠΊΠΎΠ½ΠΊΡΠ΅ΡΠ½ΡΡ Π·Π°Π΄Π°Ρ. Π ΠΊΠΎΠΌΠ½Π°ΡΠ΅ Π±Π΅Π· ΡΡΠ΅Π½ Π³ΠΎΡΡΠΈΠ½ΡΡ ΠΎΡ ΠΊΡΡ Π½ΠΈ ΠΎΡΠ»ΠΈΡΠ°Π΅Ρ Π½Π°Π»ΠΈΡΠΈΠ΅ Π³Π°ΡΠ½ΠΈΡΡΡΠ° ΠΈ Π΄ΠΈΠ²Π°Π½. Π‘ΠΏΠ°Π»ΡΠ½Ρ ΠΌΠΎΠΆΠ½ΠΎ ΠΎΡΠ΄Π΅Π»ΠΈΡΡ Ρ ΠΏΠΎΠΌΠΎΡΡΡ ΠΊΡΠΎΠ²Π°ΡΠΈ ΠΈ ΠΏΡΠΈΠΊΡΠΎΠ²Π°ΡΠ½ΠΎΠΉ ΡΡΠΌΠ±ΠΎΡΠΊΠΈ. ΠΡΠΈ ΡΡΠΎΠΌ, ΡΠ°ΡΠΏΠΎΠ»ΠΎΠΆΠ΅Π½ΠΈΠ΅ ΠΌΠ΅Π±Π΅Π»ΠΈ Π΄ΠΎΠ»ΠΆΠ½ΠΎ Π±ΡΡΡ ΡΠ°ΠΊΠΈΠΌ, ΡΡΠΎΠ±Ρ Π½ΠΈΡΠ΅Π³ΠΎ Π½Π΅ ΠΌΠ΅ΡΠ°Π»ΠΎ ΠΏΠ΅ΡΠ΅ΠΌΠ΅ΡΠ΅Π½ΠΈΡ.
ΠΠΎΠ»Π΅Π·Π½ΠΎ Π² Π·ΠΎΠ½ΠΈΡΠΎΠ²Π°Π½ΠΈΠΈ Π±Π΅Π· ΡΡΠ΅Π½ ΠΈΡΠΏΠΎΠ»ΡΠ·ΠΎΠ²Π°ΡΡ ΠΊΠΎΠ²ΡΡ. ΠΠΈΠ·Π°ΠΉΠ½ 1 ΠΊΠΎΠΌΠ½Π°ΡΠ½ΠΎΠΉ ΠΊΠ²Π°ΡΡΠΈΡΡ ΡΡΡΠ΄ΠΈΠΈ ΠΌΠΎΠΆΠ΅Ρ Π²ΠΎΠΎΠ±ΡΠ΅ Π½Π΅ ΠΈΠΌΠ΅ΡΡ ΡΠ²Π΅ΡΠΎΠ²ΠΎΠ³ΠΎ ΡΠ°Π·Π³ΡΠ°Π½ΠΈΡΠ΅Π½ΠΈΡ, Π½ΠΎ ΠΊΠΎΠ²ΡΡ ΡΠ°Π·Π½ΠΎΠ³ΠΎ ΡΠΈΠΏΠ° Π»Π΅Π³ΠΊΠΎ ΡΠ°Π·Π΄Π΅Π»ΡΡ Π΅Π΄ΠΈΠ½ΠΎΠ΅ ΠΏΠΎΠΌΠ΅ΡΠ΅Π½ΠΈΠ΅ Π½Π° Π½Π΅ΡΠΊΠΎΠ»ΡΠΊΠΎ.
ΠΠΎΡΠΌΠΎΡΡΠΈΡΠ΅ Π΅ΡΠ΅ Π·Π΄Π΅ΡΡ:
Π ΠΏΡΠΎΡΠΈΠ²ΠΎΠΏΠΎΠ»ΠΎΠΆΠ½ΠΎΡΡΡ Π±Π΅Π·Π³ΡΠ°Π½ΠΈΡΠ½ΠΎΠΌΡ ΡΠ°Π·Π΄Π΅Π»Π΅Π½ΠΈΡ Π²ΡΡΡΡΠΏΠ°ΡΡ ΡΡΠ΅Π½Ρ. ΠΠ°ΠΊ ΠΏΡΠ°Π²ΠΈΠ»ΠΎ, ΡΠΏΠ»ΠΎΡΠ½ΡΠ΅ ΠΏΠ΅ΡΠ΅Π³ΠΎΡΠΎΠ΄ΠΊΠΈ ΡΡΠ΅Π΄Π°ΡΡ ΠΏΠΎΠΌΠ΅ΡΠ΅Π½ΠΈΠ΅ ΠΈ ΡΡΠΎ Π½ΠΈΠ²Π΅Π»ΠΈΡΡΠ΅Ρ Π²Π΅ΡΡ ΡΠ°ΡΠΌ ΡΡΡΠ΄ΠΈΠΉ. ΠΡΠ΄Π° ΡΠ΄ΠΎΠ±Π½Π΅Π΅ ΠΏΡΠΈΠΌΠ΅Π½ΡΡΡ ΡΠ°Π·Π½ΠΎΠ³ΠΎ ΡΠΎΠ΄Π° Π°ΡΠΊΠΈ, ΠΏΡΠΎΡΡΠ΅Π½ΠΊΠΈ ΠΈ ΠΏΡΠΎΡΠ΅Π΅ β ΡΡΠΎ Π²ΡΡ ΠΎΠ΄. ΠΠ½ΠΈ Π½Π΅ Π·Π°Π½ΠΈΠΌΠ°ΡΡ ΠΌΠ½ΠΎΠ³ΠΎ ΠΌΠ΅ΡΡΠ°, Π½ΠΎ ΠΏΠΎΠΌΠΎΠ³Π°ΡΡ ΡΠ΅Π°Π»ΡΠ½ΠΎ ΡΠΎΠ·Π΄Π°ΡΡ ΠΎΡΡΡΠ΅Π½ΠΈΠ΅ ΠΈΠ·ΠΎΠ»ΡΡΠΈΠΈ.
ΠΠ°ΡΠ°ΡΡΡΡ ΡΡΠΎ ΠΏΡΠΈΠΌΠ΅Π½ΠΈΠΌΠΎ ΠΏΡΠΈ ΠΎΡΠ΄Π΅Π»Π΅Π½ΠΈΠΈ Π΄Π΅ΡΡΠΊΠΎΠΉ ΠΊΠΎΠΌΠ½Π°ΡΡ ΠΎΡ Π²Π·ΡΠΎΡΠ»ΠΎΠΉ ΠΈΠ»ΠΈ ΡΠΏΠ°Π»ΡΠ½ΠΈ ΠΎΡ Π³ΠΎΡΡΠΈΠ½ΠΎΠΉ. ΠΠΎΠ³Π΄Π° ΡΡΡΠ΄ΠΈΡ 27 ΠΊΠ² ΠΌ ΠΈ ΠΌΠ΅Π½Π΅Π΅ Π΄Π΅Π»ΡΡ 2 ΡΠ΅Π»ΠΎΠ²Π΅ΠΊΠ°, Π»ΡΡΡΠ΅ ΠΈΠΌΠ΅ΡΡ ΠΌΠ΅ΡΡΠΎ Π΄Π»Ρ ΠΈΠ½Π΄ΠΈΠ²ΠΈΠ΄ΡΠ°Π»ΡΠ½ΠΎΠ³ΠΎ ΠΎΡΠ΄ΡΡ Π°.
Π‘Π΅ΠΉΡΠ°Ρ ΡΠΆΠ΅ Π½Π΅Ρ ΡΠ°ΠΊΠΎΠΉ ΠΏΠΎΡΡΠ΅Π±Π½ΠΎΡΡΠΈ Π² ΠΎΠ³ΡΠΎΠΌΠ½ΡΡ Π³Π°ΡΠ½ΠΈΡΡΡΠ°Ρ Π΄Π»Ρ Ρ ΡΠ°Π½Π΅Π½ΠΈΡ Π²Π΅ΡΠ΅ΠΉ. ΠΡΠ΅ ΠΌΠΎΠΆΠ½ΠΎ ΠΏΠ΅ΡΠ΅Π»ΠΎΠΆΠΈΡΡ Π² ΡΠΊΠ°ΡΡ-ΠΊΡΠΏΠ΅ ΠΈΠ»ΠΈ Π½Π΅Π±ΠΎΠ»ΡΡΠΈΠ΅ ΡΡΠ΅Π»Π»Π°ΠΆΠΈ, Π³Π΄Π΅ ΠΌΠ΅ΡΡΠ° Π΄ΠΎΡΡΠ°ΡΠΎΡΠ½ΠΎ. ΠΡ ΡΡΠΎΠ³ΠΎ ΠΏΠΎΠ»Π½ΠΎΡΠ΅Π½Π½ΠΎΠ΅ Π·ΠΎΠ½ΠΈΡΠΎΠ²Π°Π½ΠΈΠ΅ ΡΠΎ ΡΡΠ΅Π½Π°ΠΌΠΈ ΠΌΠΎΠΆΠ΅Ρ Ρ ΠΎΡΠΎΡΠΎ Π²ΠΏΠΈΡΠ°ΡΡΡΡ Π² Π½Π΅Π±ΠΎΠ»ΡΡΠΎΠΉ ΠΊΠ²Π°ΡΡΠΈΡΠ΅.
Π Π½Π΅ΠΊΠΎΡΠΎΡΡΡ ΡΠ»ΡΡΠ°ΡΡ , ΠΊΠΎΠ³Π΄Π° Π½ΡΠΆΠ½ΠΎ ΡΠΎΡ ΡΠ°Π½ΠΈΡΡ Π·ΡΠΈΡΠ΅Π»ΡΠ½ΡΠΉ ΠΎΠ±ΡΠ΅ΠΌ ΠΊΠΎΠΌΠ½Π°ΡΡ, ΠΌΠΎΠΆΠ½ΠΎ ΠΏΡΠΈΠ±Π΅Π³Π½ΡΡΡ ΠΊ ΡΡΠ΅ΠΊΠ»ΡΠ½Π½ΡΠΌ ΠΏΠ΅ΡΠ΅Π³ΠΎΡΠΎΠ΄ΠΊΠ°ΠΌ, Π² ΡΠΎΠΌ ΡΠΈΡΠ»Π΅ ΠΈ ΠΌΠ°ΡΠΎΠ²ΡΠΌ. ΠΠ½ΠΈ Π½Π΅ ΡΡΠ΅Π·Π°ΡΡ ΠΏΡΠΎΡΡΡΠ°Π½ΡΡΠ²ΠΎ, Π½ΠΎ ΠΏΡΠΈ ΡΡΠΎΠΌ ΠΌΠΎΠ³ΡΡ ΠΎΠ³ΡΠ°Π΄ΠΈΡΡ ΠΊΠΎΠΌΠ½Π°ΡΡ.
Π€ΠΎΡΠΎΠ³Π°Π»Π΅ΡΠ΅Ρ
- 2 ΠΌΠΈΠ½ΡΡΡ, ΡΡΠΎΠ±Ρ ΠΏΡΠΎΡΠΈΡΠ°ΡΡ
Π ΡΡΠΎΠΉ ΡΡΠ°ΡΡΠ΅
ΠΠΈΠ·Π°ΠΉΠ½ ΠΈ Π·Π°Π³ΡΡΠ·ΠΊΠ° ΠΏΠΎΠ»ΡΠ·ΠΎΠ²Π°ΡΠ΅Π»ΡΡΠΊΠΎΠ³ΠΎ ΠΈΠ½ΡΠ΅ΡΡΠ΅ΠΉΡΠ° Π΄Π»Ρ ΠΏΡΠΈΠ»ΠΎΠΆΠ΅Π½ΠΈΠΉ Fluent Design / Windows.ΠΠΎΠΏΠΎΠ»Π½ΠΈΡΠ΅Π»ΡΠ½ΡΠ΅ ΠΈΠ½ΡΡΡΡΠΌΠ΅Π½ΡΡ, ΡΠ°ΠΊΠΈΠ΅ ΠΊΠ°ΠΊ Visual Studio, ΡΠΌ. ΠΠ° Π½Π°ΡΠ΅ΠΉ Π³Π»Π°Π²Π½ΠΎΠΉ ΡΡΡΠ°Π½ΠΈΡΠ΅ Π·Π°Π³ΡΡΠ·ΠΎΠΊ.
ΠΡΠΈ Π½Π°Π±ΠΎΡΡ ΠΈΠ½ΡΡΡΡΠΌΠ΅Π½ΡΠΎΠ² ΠΏΡΠ΅Π΄ΠΎΡΡΠ°Π²Π»ΡΡΡ ΡΠ»Π΅ΠΌΠ΅Π½ΡΡ ΡΠΏΡΠ°Π²Π»Π΅Π½ΠΈΡ ΠΈ ΡΠ°Π±Π»ΠΎΠ½Ρ ΠΌΠ°ΠΊΠ΅ΡΠΎΠ² Π΄Π»Ρ ΡΠ°Π·ΡΠ°Π±ΠΎΡΠΊΠΈ ΠΏΡΠΈΠ»ΠΎΠΆΠ΅Π½ΠΈΠΉ Windows.
ΠΠ½ΡΡΡΡΠΌΠ΅Π½ΡΠ°ΡΠΈΠΉ Figma
WinUI 2.4, ΠΌΠ°ΠΉ 2020 Π³.
Π‘ΠΊΠ°ΡΠ°ΡΡ
ΠΠ°Π±ΠΎΡ ΠΈΠ½ΡΡΡΡΠΌΠ΅Π½ΡΠΎΠ² Sketch
v1810, ΠΎΠΊΡΡΠ±ΡΡ 2018 Π³.
ΠΠ°Π³ΡΡΠ·ΠΈΡΡ
ΠΠ½ΡΡΡΡΠΌΠ΅Π½ΡΠ°ΡΠΈΠΉ Adobe XD
v1901, ΡΠ½Π²Π°ΡΡ 2019 Π³.
ΠΠ°Π³ΡΡΠ·ΠΈΡΡ
Windows Template Studio
ΠΡΡΡΡΠΎΠ΅ ΡΠΎΠ·Π΄Π°Π½ΠΈΠ΅ ΠΏΡΠΈΠ»ΠΎΠΆΠ΅Π½ΠΈΡ UWP Ρ ΠΏΠΎΠΌΠΎΡΡΡ ΠΈΠ½ΡΠ΅ΡΡΠ΅ΠΉΡΠ° Π½Π° ΠΎΡΠ½ΠΎΠ²Π΅ ΠΌΠ°ΡΡΠ΅ΡΠ°.
ΠΠ°Π³ΡΡΠ·ΠΈΡΡ
Π¨ΡΠΈΡΡΡ
ΠΠ΅Π½Π΅ΡΠ°ΡΠΎΡ ΠΏΠ»ΠΈΡΠΎΠΊ ΠΈ ΠΈΠΊΠΎΠ½ΠΎΠΊ Π΄Π»Ρ Adobe Photoshop ΠΡΠΎΡ Π½Π°Π±ΠΎΡ Π΄Π΅ΠΉΡΡΠ²ΠΈΠΉ Π΄Π»Ρ Adobe Photoshop ΡΠΎΠ·Π΄Π°Π΅Ρ 68 ΡΠ΅ΠΊΠΎΠΌΠ΅Π½Π΄ΡΠ΅ΠΌΡΡ
ΡΠ»Π΅ΠΌΠ΅Π½ΡΠΎΠ² ΠΌΠΎΠ·Π°ΠΈΠΊΠΈ ΠΈ Π·Π½Π°ΡΠΊΠΎΠ² ΠΈΠ· Π²ΡΠ΅Π³ΠΎ 7 ΡΠ°ΠΉΠ»ΠΎΠ².
Π‘ΠΊΠ°ΡΠ°ΡΡ Π³Π΅Π½Π΅ΡΠ°ΡΠΎΡ ΠΏΠ»ΠΈΡΠΎΠΊ ΠΈ ΠΈΠΊΠΎΠ½ΠΎΠΊ
ΠΠ±ΡΠ°Π·ΡΡ
Fluent XAML Theme Editor
Fluent XAML Theme Editor — ΡΡΠΎ ΠΈΠ½ΡΡΡΡΠΌΠ΅Π½Ρ, ΠΊΠΎΡΠΎΡΡΠΉ ΠΏΠΎΠΌΠΎΠ³Π°Π΅Ρ ΠΏΡΠΎΠ΄Π΅ΠΌΠΎΠ½ΡΡΡΠΈΡΠΎΠ²Π°ΡΡ Π³ΠΈΠ±ΠΊΠΎΡΡΡ Fluent Design System, Π° ΡΠ°ΠΊΠΆΠ΅ ΠΏΠΎΠ΄Π΄Π΅ΡΠΆΠΈΠ²Π°Π΅Ρ ΠΏΡΠΎΡΠ΅ΡΡ ΡΠ°Π·ΡΠ°Π±ΠΎΡΠΊΠΈ ΠΏΡΠΈΠ»ΠΎΠΆΠ΅Π½ΠΈΠΉ, Π³Π΅Π½Π΅ΡΠΈΡΡΡ ΡΠ°Π·ΠΌΠ΅ΡΠΊΡ XAML Π΄Π»Ρ Π½Π°ΡΠ΅ΠΉ ΡΡΠ΅Π΄Ρ ResourceDictionary, ΠΈΡΠΏΠΎΠ»ΡΠ·ΡΠ΅ΠΌΠΎΠΉ Π² ΠΏΡΠΈΠ»ΠΎΠΆΠ΅Π½ΠΈΡΡ
Windows.ΠΠ°Π³ΡΡΠ·ΠΈΡΡ ΠΎΠ±ΡΠ°Π·Π΅Ρ ΠΈΠ½ΡΡΡΡΠΌΠ΅Π½ΡΠ°
ΠΡΠΎΠ²Π΅ΡΡΡΠ΅ ΠΈΠ½ΡΡΡΡΠΌΠ΅Π½Ρ Π½Π° GitHub
VanArsdel
ΠΠ±ΡΠ°Π·Π΅Ρ ΠΊΠΎΠΌΠΏΠ»Π΅ΠΊΡΠ½ΠΎΠ³ΠΎ ΠΏΡΠΈΠ»ΠΎΠΆΠ΅Π½ΠΈΡ Π΄Π»Ρ Windows ΠΎΡ Van Arsdel, Ltd. Π±ΡΠ» ΡΠΎΠ·Π΄Π°Π½ Π΄Π»Ρ Π΄Π΅ΠΌΠΎΠ½ΡΡΡΠ°ΡΠΈΠΈ Π½ΠΎΠ²ΠΎΠΉ Π²ΠΎΠ»Π½Ρ Microsoft Fluent Design System. ΠΠ½ ΡΠΈΡΠΎΠΊΠΎ ΠΈΡΠΏΠΎΠ»ΡΠ·ΡΠ΅Ρ ΡΠ»ΡΡΡΠ΅Π½Π½ΡΡ ΠΏΠ»ΠΎΡΠ½ΠΎΡΡΡ ΠΈ Π½ΠΎΠ²ΡΠ΅ ΡΠ»Π΅ΠΌΠ΅Π½ΡΡ ΡΠΏΡΠ°Π²Π»Π΅Π½ΠΈΡ Π² Π±ΠΈΠ±Π»ΠΈΠΎΡΠ΅ΠΊΠ΅ ΠΏΠΎΠ»ΡΠ·ΠΎΠ²Π°ΡΠ΅Π»ΡΡΠΊΠΎΠ³ΠΎ ΠΈΠ½ΡΠ΅ΡΡΠ΅ΠΉΡΠ° Windows, Π° ΡΠ°ΠΊΠΆΠ΅ ΠΌΠΎΡΠ½ΡΠ΅ Π±Π°Π·ΠΎΠ²ΡΠ΅ ΡΡΠ½ΠΊΡΠΈΠΈ ΠΈΠ½ΡΡΠ°ΡΡΡΡΠΊΡΡΡΡ ΠΈ ΠΊΠΎΠΌΠΏΠΎΠ·ΠΈΡΠΈΠΈ ux. Π ΡΡΠΎΠΌ ΠΏΡΠΈΠΌΠ΅ΡΠ΅ ΠΏΠΎΠΊΠ°Π·Π°Π½ΠΎ, ΠΊΠ°ΠΊ Π²Ρ ΠΌΠΎΠΆΠ΅ΡΠ΅ ΡΠΎΠ·Π΄Π°ΡΡ Π±ΠΎΠ³Π°ΡΡΠΉ ΠΏΡΠΎΠ΄ΡΠΊΡΠΈΠ²Π½ΡΠΉ ΠΎΠΏΡΡ Π΄Π»Ρ ΡΠΏΡΠ°Π²Π»Π΅Π½ΠΈΡ ΠΈ ΠΏΠΎΠΊΡΠΏΠΊΠΈ ΡΡΡΡΠΎΠΉΡΡΠ² IoT (Π² Π΄Π°Π½Π½ΠΎΠΌ ΡΠ»ΡΡΠ°Π΅ Π»Π°ΠΌΠΏ).
ΠΠ°Π³ΡΡΠ·ΠΈΡΠ΅ ΠΎΠ±ΡΠ°Π·Π΅Ρ VanArsdel
ΠΡΠΎΠ²Π΅ΡΡΡΠ΅ ΠΎΠ±ΡΠ°Π·Π΅Ρ VanArsdel Π½Π° GitHub
BuildCast
BuildCast — ΡΡΠΎ ΠΊΠΎΠΌΠΏΠ»Π΅ΠΊΡΠ½ΡΠΉ ΠΎΠ±ΡΠ°Π·Π΅Ρ, ΡΠΎΠ·Π΄Π°Π½Π½ΡΠΉ Π΄Π»Ρ Π΄Π΅ΠΌΠΎΠ½ΡΡΡΠ°ΡΠΈΠΈ Fluent Design System ΠΈ Windows. ΠΠ½ ΠΏΠΎΠ·Π²ΠΎΠ»ΡΠ΅Ρ ΠΏΡΠΎΡΠΌΠ°ΡΡΠΈΠ²Π°ΡΡ, Π·Π°Π³ΡΡΠΆΠ°ΡΡ ΠΈ Π²ΠΎΡΠΏΡΠΎΠΈΠ·Π²ΠΎΠ΄ΠΈΡΡ Π½Π΅ΠΊΠΎΡΠΎΡΡΠ΅ Π²ΠΈΠ΄Π΅ΠΎΠΏΠΎΠ΄ΠΊΠ°ΡΡΡ, Π²ΠΊΠ»ΡΡΠ°Ρ Π²ΡΠ±ΠΎΡΠΊΡ ΡΠ°ΠΌΡΡ
ΠΏΠΎΠΏΡΠ»ΡΡΠ½ΡΡ
ΠΈΠ· 9-Π³ΠΎ ΠΊΠ°Π½Π°Π»Π° ΠΈ Π½Π΅ΠΊΠΎΡΠΎΡΡΡ
ΠΊΠ°Π½Π°Π»ΠΎΠ² Π΄Π»Ρ ΡΠ½ΡΡΠ·ΠΈΠ°ΡΡΠΎΠ² Windows. ΠΠ½ ΡΠ°ΠΊΠΆΠ΅ ΠΈΠΌΠ΅Π΅Ρ ΡΠ΅ΡΠ½ΠΈΠ»ΡΠ½ΡΠ΅ Π·Π°ΠΌΠ΅ΡΠΊΠΈ, Π·Π°ΠΊΠ»Π°Π΄ΠΊΠΈ ΠΈ Π΄ΠΈΡΡΠ°Π½ΡΠΈΠΎΠ½Π½ΠΎΠ΅ Π²ΠΎΡΠΏΡΠΎΠΈΠ·Π²Π΅Π΄Π΅Π½ΠΈΠ΅. ΠΡΠΎΡ ΠΎΠ±ΡΠ°Π·Π΅Ρ Π±ΡΠ» ΠΏΠ΅ΡΠ²ΠΎΠ½Π°ΡΠ°Π»ΡΠ½ΠΎ ΠΏΠΎΠΊΠ°Π·Π°Π½ Π½Π° ΠΊΠΎΠ½ΡΠ΅ΡΠ΅Π½ΡΠΈΠΈ Build 2017 Π² Ρ
ΠΎΠ΄Π΅ ΠΏΡΠ΅Π·Π΅Π½ΡΠ°ΡΠΈΠΈ Build Amazing Apps with Fluent Design.
ΠΠ°Π³ΡΡΠ·ΠΈΡΠ΅ ΠΏΡΠΈΠΌΠ΅Ρ BuildCast
ΠΡΠΎΠ²Π΅ΡΡΡΠ΅ ΠΏΡΠΈΠΌΠ΅Ρ BuildCast Π½Π° GitHub
ΠΠ»Π°Π½ΠΈΡΠΎΠ²ΡΠΈΠΊ ΠΎΠ±Π΅Π΄ΠΎΠ²
ΠΡΠΈΠΌΠ΅Ρ ΠΏΡΠΈΠ»ΠΎΠΆΠ΅Π½ΠΈΡ Π΄Π»Ρ Windows, Π½Π° ΠΊΠΎΡΠΎΡΠΎΠΌ Π²Ρ ΠΌΠΎΠΆΠ΅ΡΠ΅ Π·Π°ΠΏΠ»Π°Π½ΠΈΡΠΎΠ²Π°ΡΡ ΠΎΠ±Π΅Π΄Ρ Ρ Π΄ΡΡΠ·ΡΡΠΌΠΈ ΠΈ ΠΊΠΎΠ»Π»Π΅Π³Π°ΠΌΠΈ. ΠΡ ΡΠΎΠ·Π΄Π°Π΅ΡΠ΅ ΠΎΠ±Π΅Π΄, ΠΏΡΠΈΠ³Π»Π°ΡΠ°Π΅ΡΠ΅ Π΄ΡΡΠ·Π΅ΠΉ Π² ΠΈΠ½ΡΠ΅ΡΠ΅ΡΡΡΡΠΈΠΉ Π²Π°Ρ ΡΠ΅ΡΡΠΎΡΠ°Π½, Π° ΠΏΡΠΈΠ»ΠΎΠΆΠ΅Π½ΠΈΠ΅ Π·Π°Π±ΠΎΡΠΈΡΡΡ ΠΎΠ± ΡΠΏΡΠ°Π²Π»Π΅Π½ΠΈΠΈ ΠΎΠ±Π΅Π΄ΠΎΠΌ Π΄Π»Ρ Π²ΡΠ΅Ρ
Π²ΠΎΠ²Π»Π΅ΡΠ΅Π½Π½ΡΡ
ΡΡΠΎΡΠΎΠ½. ΠΡΠΎ ΠΏΡΠΈΠ»ΠΎΠΆΠ΅Π½ΠΈΠ΅ Π²ΠΊΠ»ΡΡΠ°Π΅Ρ Π² ΡΠ΅Π±Ρ ΡΠ»Π΅ΠΌΠ΅Π½ΡΡ Fluent Design System Π² ΠΏΡΠΈΠ»ΠΎΠΆΠ΅Π½ΠΈΠΈ Windows, Π² ΡΠΎΠΌ ΡΠΈΡΠ»Π΅ Π°ΠΊΡΠΈΠ»ΠΎΠ²ΡΠ΅, ΡΠ°ΡΠΊΠ»Π°Π΄Π½ΡΠ΅ ΠΈ ΡΠ²ΡΠ·Π°Π½Π½ΡΠ΅ Π°Π½ΠΈΠΌΠ°ΡΠΈΠΈ.
Π‘ΠΊΠ°ΡΠ°ΡΡ ΠΎΠ±ΡΠ°Π·Π΅Ρ Lunch Scheduler
ΠΠ·Π½Π°ΠΊΠΎΠΌΡΡΠ΅ΡΡ Ρ ΠΏΡΠΈΠΌΠ΅ΡΠΎΠΌ Lunch Scheduler Π½Π° GitHub
ΠΠ°Π»Π΅ΡΠ΅Ρ ΡΠ»Π΅ΠΌΠ΅Π½ΡΠΎΠ² ΡΠΏΡΠ°Π²Π»Π΅Π½ΠΈΡ XAML
Π ΡΡΠΎΠΌ ΠΏΡΠΈΠΌΠ΅ΡΠ΅ ΠΏΡΠ΅Π΄ΡΡΠ°Π²Π»Π΅Π½Π° ββΠΈΠ½ΡΠ΅ΡΠ°ΠΊΡΠΈΠ²Π½Π°Ρ Π΄Π΅ΠΌΠΎΠ½ΡΡΡΠ°ΡΠΈΡ Π²ΡΠ΅Ρ
ΡΠ»Π΅ΠΌΠ΅Π½ΡΠΎΠ² ΡΠΏΡΠ°Π²Π»Π΅Π½ΠΈΡ XAML.ΠΠ½ ΠΏΠΎΠΊΠ°Π·ΡΠ²Π°Π΅Ρ ΡΠ°Π·Π»ΠΈΡΠ½ΡΠ΅ ΠΌΠ°ΠΊΠ΅ΡΡ ΠΎΡ Π±Π°Π·ΠΎΠ²ΠΎΠ³ΠΎ Π΄ΠΎ Π°Π΄Π°ΠΏΡΠΈΠ²Π½ΠΎΠ³ΠΎ ΠΈ ΠΎΡΠΎΠ±ΡΠ°ΠΆΠ°Π΅Ρ ΡΠ°Π·ΠΌΠ΅ΡΠΊΡ, ΠΊΠΎΡΠΎΡΡΡ Π²Ρ ΠΌΠΎΠΆΠ΅ΡΠ΅ ΡΠΊΠΎΠΏΠΈΡΠΎΠ²Π°ΡΡ Π² ΡΠ²ΠΎΠΉ ΡΠΎΠ±ΡΡΠ²Π΅Π½Π½ΡΠΉ ΠΏΡΠΎΠ΅ΠΊΡ. ΠΡΠΈΠΌΠ΅ΡΠ°Π½ΠΈΠ΅. ΠΠ°Π³ΡΡΠΆΠ°Π΅ΠΌΡΠΉ ΡΠ°ΠΉΠ» ΠΈ ΡΠ΅ΠΏΠΎΠ·ΠΈΡΠΎΡΠΈΠΉ GitHub Π² Π½Π°ΡΡΠΎΡΡΠ΅Π΅ Π²ΡΠ΅ΠΌΡ Π½Π°Π·ΡΠ²Π°ΡΡ ΡΡΠΎΡ ΠΏΡΠΈΠΌΠ΅Ρ ΠΏΡΠΈΠ»ΠΎΠΆΠ΅Π½ΠΈΡ Β«ΠΡΠ½ΠΎΠ²Ρ ΠΏΠΎΠ»ΡΠ·ΠΎΠ²Π°ΡΠ΅Π»ΡΡΠΊΠΎΠ³ΠΎ ΠΈΠ½ΡΠ΅ΡΡΠ΅ΠΉΡΠ° (XAML)Β».
ΠΠ°Π³ΡΡΠ·ΠΈΡΠ΅ ΠΎΠ±ΡΠ°Π·Π΅Ρ Π³Π°Π»Π΅ΡΠ΅ΠΈ ΡΠ»Π΅ΠΌΠ΅Π½ΡΠΎΠ² ΡΠΏΡΠ°Π²Π»Π΅Π½ΠΈΡ XAML
ΠΠ·Π½Π°ΠΊΠΎΠΌΡΡΠ΅ΡΡ Ρ ΠΎΠ±ΡΠ°Π·ΡΠΎΠΌ Π³Π°Π»Π΅ΡΠ΅ΠΈ ΡΠ»Π΅ΠΌΠ΅Π½ΡΠΎΠ² ΡΠΏΡΠ°Π²Π»Π΅Π½ΠΈΡ XAML Π½Π° GitHub
ΠΠ°Π³ΡΡΠ·ΠΈΡΠ΅ ΠΏΡΠΈΠ»ΠΎΠΆΠ΅Π½ΠΈΠ΅ ΠΠ°Π»Π΅ΡΠ΅Ρ ΡΠ»Π΅ΠΌΠ΅Π½ΡΠΎΠ² ΡΠΏΡΠ°Π²Π»Π΅Π½ΠΈΡ XAML ΠΈΠ· ΠΠ°Π³Π°Π·ΠΈΠ½Π°
Π₯ΠΎΡΠΈΡΠ΅ Π±ΠΎΠ»ΡΡΠ΅ ΠΊΠΎΠ΄Π°?
ΠΠΎΡΠ΅ΡΠΈΡΠ΅ ΡΡΡΠ°Π½ΠΈΡΡ ΠΎΠ±ΡΠ°Π·ΡΠΎΠ² Windows Π΄Π»Ρ ΠΏΠΎΠ»ΡΡΠ΅Π½ΠΈΡ ΠΏΠΎΠ»Π½ΠΎΠ³ΠΎ ΡΠΏΠΈΡΠΊΠ° Π²ΡΠ΅Ρ ΠΏΡΠΈΠΌΠ΅ΡΠΎΠ² Π½Π°ΡΠΈΡ ΠΏΡΠΈΠ»ΠΎΠΆΠ΅Π½ΠΈΠΉ Π΄Π»Ρ Windows.ΠΠ΅ΡΠ΅ΠΉΡΠΈ Π½Π° ΠΏΠΎΡΡΠ°Π» ΠΎΠ±ΡΠ°Π·ΡΠΎΠ²
,18 Π·Π°ΠΌΠ΅ΡΠ°ΡΠ΅Π»ΡΠ½ΡΡ Π΄ΠΈΠ·Π°ΠΉΠ½ΠΎΠ² Π²ΠΈΡΡΠΈΠ½
ΠΡ ΠΌΠΎΠΆΠ΅ΡΠ΅ Π±ΡΡΡ ΡΠ΄ΠΈΠ²Π»Π΅Π½Ρ, Π½Π°ΡΠΊΠΎΠ»ΡΠΊΠΎ ΠΏΡΠΎΠ³ΡΠ»ΠΊΠ° ΠΏΠΎ Π²Π°ΡΠ΅ΠΉ Π³Π»Π°Π²Π½ΠΎΠΉ ΡΠ»ΠΈΡΠ΅ ΠΈΠ»ΠΈ ΡΠΎΡΠ³ΠΎΠ²ΠΎΠΌΡ ΡΠ΅Π½ΡΡΡ ΠΌΠΎΠΆΠ΅Ρ Π²Π΄ΠΎΡ Π½ΠΎΠ²ΠΈΡΡ Π²Π°Ρ Π½Π° ΡΡΠ°ΡΡΠΈΠ΅ Π² ΡΠ»Π΅Π΄ΡΡΡΠ΅ΠΌ ΠΏΡΠΎΠ΅ΠΊΡΠ΅ ΠΈΠ»ΠΈ ΠΏΠΎΡΡΡΠΎΠ»ΠΈΠΎ. Π‘ Ρ ΠΎΡΠΎΡΠΈΠΌ Π΄ΠΈΠ·Π°ΠΉΠ½ΠΎΠΌ Π³Π»Π°Π·, ΠΎΠ΄Π΅ΠΆΠ΄Π°, ΠΎΠ±ΡΠ²Ρ, ΠΊΠΎΠΌΠΏΠ°ΠΊΡ-Π΄ΠΈΡΠΊΠΈ, ΠΈΠ³ΡΡ, Π±ΡΠΌΠ°Π³Π° ΠΈ Π΄Π°ΠΆΠ΅ Π΅Π΄Π° ΠΌΠΎΠ³ΡΡ Π±ΡΡΡ ΠΎΠ±ΡΠ΅Π΄ΠΈΠ½Π΅Π½Ρ, ΡΡΠΎΠ±Ρ ΡΠΎΠ·Π΄Π°ΡΡ ΠΏΠΎΡΡΡΡΠ°ΡΡΡΡ Π²ΠΈΡΡΠΈΠ½Ρ. ΠΠ·Π½Π°ΡΠ°Π»ΡΠ½ΠΎ ΡΠΎΠ·Π΄Π°Π½Π½ΡΠΉ Π΄Π»Ρ ΠΏΡΠΈΠ²Π»Π΅ΡΠ΅Π½ΠΈΡ ΠΏΠΎΠΊΡΠΏΠ°ΡΠ΅Π»Π΅ΠΉ ΡΠ΅ΡΠ΅Π· Π΄Π²Π΅ΡΡ, ΠΈΡΠΊΡΡΡΡΠ²ΠΎ Π²ΠΈΡΡΠΈΠ½ ΠΏΡΠΎΡΠ»ΠΎ Π΄ΠΎΠ»Π³ΠΈΠΉ ΠΏΡΡΡ Π·Π° ΠΏΠΎΡΠ»Π΅Π΄Π½ΠΈΠ΅ Π½Π΅ΡΠΊΠΎΠ»ΡΠΊΠΎ Π»Π΅Ρ.
ΠΡ ΠΈΡΠΊΠ°Π»ΠΈ ΡΠΎΡΠ³ΠΎΠ²ΡΠ΅ ΡΠ»ΠΈΡΡ ΠΌΠΈΡΠ°, ΡΡΠΎΠ±Ρ ΠΏΡΠ΅Π΄Π»ΠΎΠΆΠΈΡΡ Π²Π°ΠΌ Π»ΡΡΡΠΈΠ΅ ΠΎΠ±ΡΠ°Π·ΡΡ Π΄ΠΈΠ·Π°ΠΉΠ½Π° Π²ΠΈΡΡΠΈΠ½ ΠΎΡ Π»ΡΡΡΠΈΡ ΠΊΡΠ΅Π°ΡΠΈΠ²Π½ΡΡ Π΄ΠΈΡΠ΅ΠΊΡΠΎΡΠΎΠ², Π³ΡΠ°ΡΠΈΡΠ΅ΡΠΊΠΈΡ Π΄ΠΈΠ·Π°ΠΉΠ½Π΅ΡΠΎΠ² ΠΈ Ρ ΡΠ΄ΠΎΠΆΠ½ΠΈΠΊΠΎΠ² ΡΠΎ Π²ΡΠ΅Π³ΠΎ ΠΌΠΈΡΠ°.ΠΠ°ΡΠ»Π°ΠΆΠ΄Π°ΠΉΡΠ΅ΡΡ!
01. Galeries Lafayette
ΠΠΎΠ»Π»Π΅ΠΊΡΠΈΡ Π·Π°Π±Π°Π²Π½ΡΡ ΠΏΠ΅ΡΡΠΎΠ½Π°ΠΆΠ΅ΠΉ ΡΠΊΡΠ°ΡΠ°Π΅Ρ ΠΎΠΊΠ½Π° ΠΏΠ°ΡΠΈΠΆΡΠΊΠΎΠ³ΠΎ Galerias LafayetteΠΠΈΡΡΠΈΠ½Ρ Π² ΠΏΠ°ΡΠΈΠΆΡΠΊΠΎΠΌ Galeries Lafayette Π½Π° 2018 Π³ΠΎΠ΄ Π±ΡΠ»ΠΈ Π²Π΄ΠΎΡ Π½ΠΎΠ²Π»Π΅Π½Ρ ΡΠΈΡΡΠ½ΠΊΠ°ΠΌΠΈ Π΄Π΅ΡΠ΅ΠΉ 5-11 Π»Π΅Ρ, ΠΊΠΎΡΠΎΡΡΠ΅ ΡΡΠ°ΡΡΠ²ΠΎΠ²Π°Π»ΠΈ Π² ΠΊΠΎΠ½ΠΊΡΡΡΠ΅. ΠΡΡΡΠΈΠ΅ ΡΠΈΡΡΠ½ΠΊΠΈ Π±ΡΠ»ΠΈ ΠΏΡΠ΅Π²ΡΠ°ΡΠ΅Π½Ρ Π² ΠΏΡΠΈΡΡΠ½ΡΡ ΠΏΠ΅ΡΡΠΎΠ½Π°ΠΆΠ΅ΠΉ, ΠΊΠΎΡΠΎΡΡΠ΅ ΡΠΊΡΠ°ΡΠ°ΡΡ Π΄ΠΈΡΠΏΠ»Π΅ΠΈ.
02. Bergdorf Goodman
ΠΡΠΈ ΡΠ°Π½ΡΠ°ΡΡΠΈΡΠ΅ΡΠΊΠΈΠ΅ Π²ΠΈΡΡΠΈΠ½Ρ ΠΈΠΌΠ΅ΡΡ ΠΏΡΠΈΡΡΠ½ΡΡ ΡΠ΅ΠΌΡ.Π ΠΎΡΠΊΠΎΡΠ½ΡΠΉ ΡΠ½ΠΈΠ²Π΅ΡΠΌΠ°Π³ Bergdorf Goodman ΠΈΠΌΠ΅Π΅Ρ Π²ΡΠ±ΠΎΡ ΠΏΡΠΈΡΡΠ΄Π»ΠΈΠ²ΠΎ ΠΎΡΠΎΡΠΌΠ»Π΅Π½Π½ΡΡ ΠΎΠΊΠΎΠ½, ΠΊΠΎΡΠΎΡΡΠ΅ ΠΎΡΠΌΠ΅ΡΠ°ΡΡ Π²ΡΠ΅ ΡΠ»Π°Π΄ΠΊΠΎΠ΅.ΠΠ°ΠΆΠ΄ΠΎΠ΅ ΠΎΠΊΠ½ΠΎ Π² Π½ΡΡ-ΠΉΠΎΡΠΊΡΠΊΠΎΠΌ ΠΌΠ°Π³Π°Π·ΠΈΠ½Π΅ ΠΈΠΌΠ΅Π΅Ρ ΡΠ²ΠΎΡ ΡΠ²Π΅ΡΠΎΠ²ΡΡ Π³Π°ΠΌΠΌΡ, ΠΈ Π²Ρ ΠΌΠΎΠΆΠ΅ΡΠ΅ Π»Π΅Π³ΠΊΠΎ ΠΏΠΎΡΡΠ°ΡΠΈΡΡ Π½Π΅ΠΊΠΎΡΠΎΡΠΎΠ΅ Π²ΡΠ΅ΠΌΡ Π½Π° ΠΏΠΎΠΈΡΠΊ Π΄Π΅ΡΠ°Π»Π΅ΠΉ Π² ΠΊΠ°ΠΆΠ΄ΠΎΠΌ Π΄ΠΈΠ·Π°ΠΉΠ½Π΅. ΠΠ°ΠΌ ΠΎΡΠΎΠ±Π΅Π½Π½ΠΎ Π½ΡΠ°Π²ΠΈΡΡΡ ΠΏΡΡΠ½ΠΈΡΠ½Π°Ρ ΡΠ΅ΠΌΠ° ΡΡΠΎΠ³ΠΎ ΠΏΠΎΠΊΠ°Π·Π°.
03. Tiffany & Co.
Π ΠΎΠΆΠ΄Π΅ΡΡΠ²Π΅Π½ΡΠΊΠΈΠ΅ Π²ΠΈΡΡΠΈΠ½Ρ 2017 Π³ΠΎΠ΄Π° ΠΎΡ Tiffany & Co ΡΠΊΡΠ°ΡΠ°ΡΡ Π²ΠΎΡ ΡΠ°ΠΊΠΈΠ΅ Π²ΠΎΡ ΠΌΠ°Π½Π΅ΠΊΠ΅Π½Ρ Ρ ΡΠ΄ΠΎΠΆΠ½ΠΈΠΊΠΎΠ²-ΠΌΠ΅ΡΠ°Π»Π»ΠΈΡΡΠΎΠ², ΠΈ Π½Π°ΡΠ΅ Π³Π»Π°Π²Π½ΠΎΠ΅ ΠΈΠ·ΠΎΠ±ΡΠ°ΠΆΠ΅Π½ΠΈΠ΅ΠΠ°ΠΆΠ΄ΡΠΉ Π³ΠΎΠ΄ ΡΠ»Π°Π³ΠΌΠ°Π½ΡΠΊΠΈΠΉ ΠΌΠ°Π³Π°Π·ΠΈΠ½ Tiffany Π² ΠΡΡ-ΠΠΎΡΠΊΠ΅ ΠΏΠΎΠ»ΡΡΠ°Π΅Ρ Π²ΠΎΠ»ΡΠ΅Π±Π½ΡΠΉ ΡΠΎΠΆΠ΄Π΅ΡΡΠ²Π΅Π½ΡΠΊΠΈΠΉ ΠΌΠ°ΠΊΠΈΡΠΆ. Π ΠΏΡΠΎΡΠ»ΡΡ Π²ΠΈΡΡΠΈΠ½Π°Ρ Π±ΡΠ»ΠΈ ΠΌΠ°ΡΠΎΠ²ΡΠ΅ Π³ΠΎΡΠΎΠ΄ΡΠΊΠΈΠ΅ ΠΏΠ΅ΠΉΠ·Π°ΠΆΠΈ ΠΈ ΡΠΎΡΠΊΠΎΡΠ½ΡΠ΅ ΠΈΠ½ΡΠ΅ΡΡΠ΅ΡΡ, Π° ΠΏΡΠΎΡΠ»ΠΎΠ³ΠΎΠ΄Π½ΠΈΠΉ Π΄ΠΈΠ·Π°ΠΉΠ½ Π±ΡΠ» Π² ΡΠ°Π²Π½ΠΎΠΉ ΡΡΠ΅ΠΏΠ΅Π½ΠΈ Π²ΠΎΡΡ ΠΈΡΠΈΡΠ΅Π»ΡΠ½ΡΠΌ.
ΠΠΊΠΎΠ½Π½ΡΠ΅ Π²ΠΈΡΡΠΈΠ½Ρ 2017 Π³ΠΎΠ΄Π° ΠΏΡΠ΅Π΄ΡΡΠ°Π²Π»ΡΠ»ΠΈ ΡΠΎΠ±ΠΎΠΉ ΠΈΠ·ΠΎΠ±ΡΠ°ΠΆΠ΅Π½ΠΈΠ΅ Π’ΠΈΡΡΠ°Π½ΠΈ ΠΠ»Ρ ΠΈ ΡΠ΅ΡΠ΅Π±ΡΠΈΡΡΠΎΠ³ΠΎ ΡΠ²Π΅ΡΠ°, Π² ΠΊΠΎΡΠΎΡΠΎΠΌ Π±ΡΠ»ΠΈ ΠΏΡΠ΅Π΄ΡΡΠ°Π²Π»Π΅Π½Ρ Π²Π·ΡΠΎΡΠ»ΡΠ΅ ΠΌΠΎΠ΄Π΅Π»ΠΈ Ρ ΡΠ΄ΠΎΠΆΠ½ΠΈΠΊΠΎΠ², ΠΊΠΎΡΠΎΡΡΠ΅ ΡΠ±ΡΠ°ΡΡΠ²Π°Π»ΠΈ Π±ΡΠΈΠ»Π»ΠΈΠ°Π½ΡΡ, Π»ΠΎΠ²ΠΈΠ»ΠΈ Π΄ΡΠ°Π³ΠΎΡΠ΅Π½Π½ΡΠ΅ ΠΊΠ°ΠΌΠ½ΠΈ ΠΈΠ»ΠΈ ΠΏΡΠΎΡΠ°Π»ΠΊΠΈΠ²Π°Π»ΠΈ ΡΡΠΎΠΏΠΊΠΈ ΡΠΊΠ°ΡΡΠ»ΠΎΠΊ Ρ Π΄ΡΠ°Π³ΠΎΡΠ΅Π½Π½ΠΎΡΡΡΠΌΠΈ ΡΠ΅ΡΠ΅Π· ΡΠ½Π΅Π³.
04. Harvey Nichols
Π₯Π°ΡΠ²ΠΈ ΠΠΈΠΊΠΎΠ»Ρ Π²ΡΠ±ΡΠ°Π» ΡΠΎΡΠ°Π»ΡΠ½ΡΠΉ Π³Π»Π°ΠΌΡΡ Π² ΡΠ²ΠΎΠΈΡ ΡΠΎΠΆΠ΄Π΅ΡΡΠ²Π΅Π½ΡΠΊΠΈΡ ΠΎΠΊΠ½Π°Ρ 2017 Π³ΠΎΠ΄Π°. Π‘Ρ Π΅ΠΌΠ° ΠΎΡΠ½ΠΎΠ²Π°Π½Π° Π½Π° Π·Π²Π΅Π·Π΄Π°Ρ , Π½Π΅ΠΎΠ½ΠΎΠ²ΡΡ ΠΎΠ³Π½ΡΡ ΠΈ ΠΌΠ½ΠΎΠΆΠ΅ΡΡΠ²Π΅ Π±Π»Π΅ΡΡΠΎΠΊ (ΠΊΠ°ΠΆΠ΄ΡΠΉ ΠΈΠ· ΠΌΠ°Π½Π΅ΠΊΠ΅Π½ΠΎΠ² ΠΈΠΌΠ΅Π΅Ρ Π²ΡΠ΅, ΡΡΠΎ Π½ΡΠΆΠ½ΠΎ).ΠΠ»Ρ ΡΠΎΠ·Π΄Π°Π½ΠΈΡ ΡΡΠΎΠΉ ΡΠ΅Π΅ΡΠΈΠΈ, ΠΎΡΡΠ°Π½Π°Π²Π»ΠΈΠ²Π°ΡΡΠ΅ΠΉ Π΄Π²ΠΈΠΆΠ΅Π½ΠΈΠ΅, ΠΌΠ°Π³Π°Π·ΠΈΠ½ Π² ΠΠ°ΠΉΡΡΠ±ΡΠΈΠ΄ΠΆ, ΠΠΎΠ½Π΄ΠΎΠ½, ΠΈΡΠΏΠΎΠ»ΡΠ·ΠΎΠ²Π°Π» 5 370 ΠΌ (17 618 ΡΡΡΠΎΠ²) ΡΠ²Π΅ΡΠΎΠ΄ΠΈΠΎΠ΄Π½ΡΡ Π»Π΅Π½Ρ, 5101 Π±Π΅Π·Π΄Π΅Π»ΡΡΠ΅ΠΊ, Π½Π΅ΠΎΠ½ΠΎΠ²ΡΠ΅ ΡΠ°ΡΡ ΠΈ Π·Π²Π΅Π·Π΄Ρ, Π±ΠΎΠ»Π΅Π΅ 2000 ΠΌ (6562 ΡΡΡΠΎΠ²) Π±Π»Π΅ΡΡΡΡΠ΅Π³ΠΎ Π²ΠΈΠ½ΠΈΠ»Π°, 3555 Π²ΠΈΠ½ΠΈΠ»ΠΎΠ²ΡΡ Π·Π²Π΅Π·Π΄Ρ ΠΈ 382 Π²ΡΠ°ΡΠ°ΡΡΠΈΡ ΡΡ Π·Π΅ΡΠΊΠ°Π»ΡΠ½ΡΡ ΡΠ°ΡΠ°. Π£Ρ.
05. ΠΠ°Π²ΠΈΠ΄ ΠΡΡΠ°Π΄ΡΠ½ Π΄Π»Ρ LaGalleria
LaGalleria — ΡΡΠΎ Π°ΡΠΌΡΠ½ΡΠΊΠΈΠΉ ΡΠΎΡΠΊΠΎΡΠ½ΡΠΉ Π±ΡΡΠΈΠΊLaGalleria — ΡΡΠΎ Π±ΡΡΠΈΠΊ Π² ΡΠ΅Π½ΡΡΠ΅ ΠΡΠ΅Π²Π°Π½Π°, ΠΡΠΌΠ΅Π½ΠΈΡ, ΠΈ Π΄Π»Ρ ΡΠ΅ΠΊΠ»Π°ΠΌΡ ΡΠ²ΠΎΠ΅ΠΉ ΠΊΠΎΠ»Π»Π΅ΠΊΡΠΈΠΈ Π²Π΅ΡΠ½Π°-Π»Π΅ΡΠΎ 2017 ΡΠΏΠ΅ΡΠΈΠ°Π»ΠΈΡΡ ΠΏΠΎ ΡΠΎΠ·Π½ΠΈΡΠ½ΠΎΠΌΡ ΠΌΠ°ΡΠΊΠ΅ΡΠΈΠ½Π³Ρ ΠΠ°Π²ΠΈΠ΄ ΠΡΡΠ°Π΄ΡΠ½ ΡΠΎΠ·Π΄Π°Π» ΠΏΠΎΡΡΡΡΠ°ΡΡΠΈΠΉ Π½Π°Π±ΠΎΡ ΠΡΠΎΠ±ΡΠ°ΠΆΠ°Π΅ΡΡΡ ΠΎΠΊΠ½ΠΎ Π² Π΄ΠΆΡΠ½Π³Π»ΡΡ .
ΠΡΠΎ Π½Π΅ ΠΎΠ±ΡΡΠ½ΠΎΠ΅ ΡΠ½Π°ΡΡΠΆΠ΅Π½ΠΈΠ΅ Π² Π΄ΠΆΡΠ½Π³Π»ΡΡ .ΠΡΡΠ°Π΄ΡΠ½, Π΄Π΅ΠΌΠΎΠ½ΡΡΡΠΈΡΡΡ Π³ΠΎΡΡΡΠΈΠ΅ Π½ΠΎΠ²ΠΈΠ½ΠΊΠΈ ΠΎΡ Π»ΡΠΊΡΠΎΠ²ΡΡ Π±ΡΠ΅Π½Π΄ΠΎΠ², Π²ΠΊΠ»ΡΡΠ°Ρ Fendi, Valentino ΠΈ Saint Laurent Paris, ΠΈΡΠΊΡΡΠ½ΠΎ ΡΠ°ΡΠΏΠΎΠ»ΠΎΠΆΠΈΠ» Π΄ΠΈΡΠΏΠ»Π΅ΠΉ ΡΠ°ΠΊ, ΡΡΠΎΠ±Ρ Π³ΠΎΡΡΡΠ°Ρ ΠΎΠ΄Π΅ΠΆΠ΄Π° ΡΠ΅Π·ΠΎΠ½Π° Π²ΡΠ΄Π΅Π»ΡΠ»Π°ΡΡ Π½Π° ΡΠΎΠ½Π΅ Π³ΡΡΡΠΎΠΉ Π»ΠΈΡΡΠ²Ρ.
06. Elemental Π΄Π»Ρ Ermenegildo Zegna
Elemental Π΄ΠΎΠ»ΠΆΠ΅Π½ Π²Π·ΡΡΡ Π½Π° ΡΠ΅Π±Ρ Π²ΡΠ΅ 23 ΠΎΠΊΠΎΠ½Π½ΡΡ Π΄ΠΈΡΠΏΠ»Π΅Ρ HarrodsΠΡΠΎΠ΅ΠΊΡΠΈΡΠΎΠ²Π°Π½ΠΈΠ΅, ΠΏΡΠΎΠΈΠ·Π²ΠΎΠ΄ΡΡΠ²ΠΎ ΠΈ ΡΡΡΠ°Π½ΠΎΠ²ΠΊΠ° ΠΏΠΎΠ»Π½ΠΎΠ³ΠΎ Π½Π°Π±ΠΎΡΠ° ΠΈΠ· 23 ΠΎΠΊΠΎΠ½ Π² Harrods ΠΌΠΎΠΆΠ΅Ρ ΠΏΠΎΠΊΠ°Π·Π°ΡΡΡΡ Π½Π΅ΠΏΡΠΎΡΡΡΠΌ Π΄Π΅Π»ΠΎΠΌ, Π½ΠΎ ΡΡΠΎ ΡΠΎ, ΡΡΠΎ Elemental ΠΎΡΡΡΠ΅ΡΡΠ²ΠΈΠ» Π΄Π»Ρ Π·Π°ΠΏΡΡΠΊΠ° ΠΊΠΎΠ»Π»Π΅ΠΊΡΠΈΠΈ ΠΡΡΡΡ ΠΡΠΌΠ΅Π½Π΅Π³ΠΈΠ»ΡΠ΄ΠΎ ΠΠ΅Π½ΡΡ Π‘ΡΠ΅ΡΠ°Π½ΠΎ ΠΠΈΠ»Π°ΡΠΈ.
ΠΠΈΡΠΏΠ»Π΅ΠΈ Π΄Π»Ρ Ermenegildo Zegna ΠΈΡΠΏΠΎΠ»ΡΠ·ΠΎΠ²Π°Π»ΠΈ Π²ΡΠ΅ Π²ΠΈΠ·ΡΠ°Π»ΡΠ½ΡΠ΅ ΠΏΡΠΈΠ΅ΠΌΡ Π² ΠΊΠ½ΠΈΠ³Π΅ΠΡΠΏΠΎΠ»ΡΠ·ΡΡ ΡΠΏΠΈΡΠ΅ΡΠΊΠΈΠΉ ΡΠΈΠ»ΡΠΌ, ΡΠΎΠ·Π΄Π°Π½Π½ΡΠΉ Pilati Π΄Π»Ρ ΡΠ²ΠΎΠ΅Π³ΠΎ ΠΏΠΎΠ΄ΠΈΡΠΌΠ½ΠΎΠ³ΠΎ ΡΠΎΡ Π² ΠΠΈΠ»Π°Π½Π΅, Π² ΠΊΠ°ΡΠ΅ΡΡΠ²Π΅ ΡΡΠ°Π»ΠΎΠ½Π°, ΠΏΡΠΎΠ΅ΠΊΡΡ Elemental Π²ΠΊΠ»ΡΡΠ°Π»ΠΈ Π² ΡΠ΅Π±Ρ ΠΎΠΏΡΠΈΡΠ΅ΡΠΊΠΈΠ΅ ΠΈΠ»Π»ΡΠ·ΠΈΠΈ, Π·Π²ΡΠΊΠΎΠ²ΡΠ΅ ΠΏΠ΅ΠΉΠ·Π°ΠΆΠΈ, Π°Π½ΠΈΠΌΠΈΡΠΎΠ²Π°Π½Π½ΡΠ΅ ΡΠ²Π΅ΡΠΎΠ²ΡΠ΅ ΡΡΡΠ΅ΠΊΡΡ ΠΈ Π½Π΅ΠΊΠΎΡΠΎΡΡΠ΅ Π½Π΅Π²Π΅ΡΠΎΡΡΠ½ΡΠ΅ ΡΠ΅Ρ Π½ΠΎΠ»ΠΎΠ³ΠΈΠΈ, Π²ΠΊΠ»ΡΡΠ°Ρ ΡΠ°ΡΡΠΈΡΠ΅Π½Π½ΡΡ ΡΠ΅Ρ Π½ΠΎΠ»ΠΎΠ³ΠΈΡ Π²ΠΈΠ΄ ΠΎΠ±ΡΠ²ΠΈ Zegna, ΠΊΠΎΡΠΎΡΠΎΠΉ ΠΏΡΠΎΡ ΠΎΠΆΠΈΠ΅ ΠΌΠΎΠ³Π»ΠΈ ΠΌΠ°Π½ΠΈΠΏΡΠ»ΠΈΡΠΎΠ²Π°ΡΡ ΠΏΠΎΡΡΠ΅Π΄ΡΡΠ²ΠΎΠΌ ΡΠΎΠ±ΡΡΠ²Π΅Π½Π½ΡΡ Π΄Π²ΠΈΠΆΠ΅Π½ΠΈΠΉ ΡΠ΅Π»Π° Ρ ΠΏΠΎΠΌΠΎΡΡΡ ΠΈΠ½ΡΡΠ°ΠΊΡΠ°ΡΠ½ΡΡ Π΄Π°ΡΡΠΈΠΊΠΎΠ².
07. ΠΠ΅ΠΉΡ Π‘ΠΏΠ΅ΠΉΠ΄ ΠΈ eBay
ΠΠΈΡΠ΅Π»ΠΈ ΠΡΡ-ΠΠΎΡΠΊΠ° Π½Π΅ ΠΌΠΎΠ³Π»ΠΈ ΠΏΡΠΎΠΏΡΡΡΠΈΡΡ ΡΡΠΎΡ ΠΏΠΎΡΠ°Π·ΠΈΡΠ΅Π»ΡΠ½ΡΠΉ Π΄ΠΈΡΠΏΠ»Π΅ΠΉ ΠΆΠ΅Π»ΡΠΎΠ³ΠΎ ΠΎΠΊΠ½Π°ΠΠΈΠ·Π°ΠΉΠ½Π΅ΡΡΠΊΠΈΠΉ Π±ΡΠ΅Π½Π΄ ΠΠ΅ΠΉΡ Π‘ΠΏΠ΅ΠΉΠ΄ ΠΎΠ±ΡΠ΅Π΄ΠΈΠ½ΠΈΠ»ΡΡ Ρ ΡΠ°ΠΉΡΠΎΠΌ ΠΎΠ½Π»Π°ΠΉΠ½-Π°ΡΠΊΡΠΈΠΎΠ½Π° eBay, ΡΡΠΎΠ±Ρ ΠΏΡΠ΅Π΄Π»ΠΎΠΆΠΈΡΡ ΡΠ½ΠΈΠΊΠ°Π»ΡΠ½ΡΠΉ ΠΎΠΏΡΡ ΠΏΠΎΠΊΡΠΏΠΎΠΊ — ΠΏΡΠΈΠ²Π½Π΅Ρ ΡΠΎΠ²Π΅ΡΡΠ΅Π½Π½ΠΎ Π½ΠΎΠ²ΠΎΠ΅ Π·Π½Π°ΡΠ΅Π½ΠΈΠ΅ Π² ΡΡΠ°Π·Ρ ‘ΡΠ°ΡΡΠΌΠ°ΡΡΠΈΠ²Π°Π½ΠΈΠ΅ Π²Π΅ΡΡΠΈΠ½’.
Π―ΡΠΊΠΈΠΉ Π΄ΠΈΡΠΏΠ»Π΅ΠΉ Ρ ΠΆΠ΅Π»ΡΡΠΌΠΈ ΠΎΠΊΠ½Π°ΠΌΠΈ, ΡΠ°ΡΠΏΠΎΠ»ΠΎΠΆΠ΅Π½Π½ΡΠΉ Π½Π° ΠΠ°Π½Ρ ΡΡΡΠ΅Π½Π΅, Π½Π΅ ΡΠΎΠ»ΡΠΊΠΎ ΠΊΡΠ°ΡΠΈΠ²ΠΎ Π΄Π΅ΠΌΠΎΠ½ΡΡΡΠΈΡΠΎΠ²Π°Π» ΠΏΡΠ΅Π΄Π»Π°Π³Π°Π΅ΠΌΡΠ΅ ΡΠΎΠ²Π°ΡΡ, Π½ΠΎ ΠΈ ΠΈΠ½ΡΠ΅ΡΠ°ΠΊΡΠΈΠ²Π½ΡΠΉ Π΄ΠΈΡΠΏΠ»Π΅ΠΉ, ΠΏΠΎΠ·Π²ΠΎΠ»ΡΡΡΠΈΠΉ ΠΏΠΎΠΊΡΠΏΠ°ΡΠ΅Π»ΡΠΌ Π΄Π΅Π»Π°ΡΡ ΠΏΠΎΠΊΡΠΏΠΊΠΈ Π² Π²ΠΈΡΡΠΈΠ½Π°Ρ ΡΠ²ΠΎΠΈΡ ΡΠΌΠ°ΡΡΡΠΎΠ½ΠΎΠ².
08. ΠΡΡΠ΅ΠΌ Π΄Π»Ρ Selfridges
ΠΡΡΠ΅ΠΌ ΡΠΎΠ·Π΄Π°Π» ΠΏΠΎΡΡΡΡΠ°ΡΡΡΡ ΠΌΠ΅Ρ Π°Π½ΠΈΡΠ΅ΡΠΊΡΡ ΠΌΠΎΠ΄Π΅Π»Ρ ΡΠΎΠ»Π½Π΅ΡΠ½ΠΎΠΉ ΡΠΈΡΡΠ΅ΠΌΡ Π΄Π»Ρ ΠΎΡΠΎΠ±ΡΠ°ΠΆΠ΅Π½ΠΈΡ SelfridgesΠΡΠΎ Π½Π΅ ΠΏΠ΅ΡΠ²ΡΠΉ ΡΠ°Π·, ΠΊΠΎΠ³Π΄Π° Π±ΡΠΈΡΠ°Π½ΡΠΊΠΈΠΉ ΡΠ½ΠΈΠ²Π΅ΡΠΌΠ°Π³, ΠΏΠΎ ΡΡΡΠΈ, ΠΏΠΎΡΠ²ΠΈΡΡΡ Π² ΡΡΠΎΠΌ ΡΠΏΠΈΡΠΊΠ΅, ΠΈ Π½Π΅ Π±Π΅Π· ΠΏΡΠΈΡΠΈΠ½Ρ.Π Π ΠΎΠΆΠ΄Π΅ΡΡΠ²Ρ 2015 Π³ΠΎΠ΄Π° Selfridges ΠΏΠΎΠ»ΡΡΠΈΠ»ΠΈ ΠΏΡΠ΅ΠΈΠΌΡΡΠ΅ΡΡΠ²ΠΎ Π² ΠΊΠΎΠ½ΠΊΡΡΡΠ΅, ΠΏΡΠΈΠ²Π»Π΅ΠΊΠ°Ρ SFX ΠΊΠΎΠΌΠΏΠ°Π½ΠΈΡ Artem Π΄Π»Ρ ΡΠΎΠ·Π΄Π°Π½ΠΈΡ ΠΏΠΎΡΡΡΡΠ°ΡΡΠ΅ΠΉ ΠΌΠ΅Ρ Π°Π½ΠΈΡΠ΅ΡΠΊΠΎΠΉ ΠΌΠΎΠ΄Π΅Π»ΠΈ ΡΠΎΠ»Π½Π΅ΡΠ½ΠΎΠΉ ΡΠΈΡΡΠ΅ΠΌΡ, ΠΊΠΎΡΠΎΡΠ°Ρ ΡΡΠ°Π»Π° ΡΠ΅Π½ΡΡΠ°Π»ΡΠ½ΡΠΌ ΡΠ»Π΅ΠΌΠ΅Π½ΡΠΎΠΌ ΠΊΠΎΡΠΌΠΈΡΠ΅ΡΠΊΠΎΠΉ Π²ΠΈΡΡΠΈΠ½Ρ.
ΠΠΎΠ΄Π΅Π»Ρ ΠΈΠ· Π·ΠΎΠ»ΠΎΡΠ° ΠΈ Ρ ΡΠΎΠΌΠ° Π΄Π»ΠΈΠ½ΠΎΠΉ 2,8 ΠΌ Π²ΡΠ°ΡΠ°Π»Π°ΡΡ Π²Π΅ΡΡ Π΄Π΅Π½Ρ, ΠΊΠ°ΠΆΠ΄ΡΠΉ Π΄Π΅Π½Ρ Π΄ΠΎ ΠΠΎΠ²ΠΎΠ³ΠΎ Π³ΠΎΠ΄Π°, ΠΏΡΠΈΡΠ΅ΠΌ ΠΊΠ°ΠΆΠ΄Π°Ρ ΠΈΠ· ΠΏΠ»Π°Π½Π΅Ρ Π²ΡΠ°ΡΠ°Π»Π°ΡΡ Π½Π΅Π·Π°Π²ΠΈΡΠΈΠΌΠΎ. Π§ΠΈΡΠ°ΠΉΡΠ΅ Π±ΠΎΠ»ΡΡΠ΅ Π² Π½Π°ΡΠ΅ΠΌ Π½ΠΎΠ²ΠΎΡΡΠ½ΠΎΠΌ ΡΠΎΠΎΠ±ΡΠ΅Π½ΠΈΠΈ ΡΠΎΠ³ΠΎ Π²ΡΠ΅ΠΌΠ΅Π½ΠΈ Π·Π΄Π΅ΡΡ.
09. Okamoto Studio Π΄Π»Ρ Barney’s
Shintaro Okamoto, ΠΎΡΠ½ΠΎΠ²Π°ΡΠ΅Π»Ρ Okamoto Studio, Π΄Π΅ΠΌΠΎΠ½ΡΡΡΠΈΡΡΠ΅Ρ ΡΠ²ΠΎΠ΅ ΠΌΠ°ΡΡΠ΅ΡΡΡΠ²ΠΎ Π² ΠΈΡΠΊΡΡΡΡΠ²Π΅ Π²ΠΎ Π²ΡΠ΅ΠΌΡ ΠΆΠΈΠ²ΠΎΠ³ΠΎ Π²ΡΡΡΡΠΏΠ»Π΅Π½ΠΈΡ Π² The Ice CarversΠΠ΅Π΄ΡΠ½ΡΠ΅ ΡΠΊΡΠ»ΡΠΏΡΡΡΡ ΠΏΡΠ΅ΠΎΠ±ΡΠ°Π·ΠΈΠ»ΠΈ ΡΡΠΎ Π²ΠΈΡΡΠΈΠ½Ρ Π½ΡΡ-ΠΉΠΎΡΠΊΡΠΊΠΎΠ³ΠΎ ΡΠ½ΠΈΠ²Π΅ΡΠΌΠ°Π³Π° Barney’s — ΡΠΎΠ±ΡΡΠ²Π΅Π½Π½ΠΎΠ³ΠΎ Okamoto ‘ ΡΡΡΠ΄ΠΈΡ Π²Π΄Π°Π»ΠΈ ΠΎΡ ΡΡΡΠ΄ΠΈΠΈ.ΠΡΠ΅ΠΌΠΈΡΠ½ΠΎ ΠΈΠ·Π²Π΅ΡΡΠ½ΡΠΉ Π»Π΅Π΄ΠΎΡΡΠ±Π½ΡΠΉ ΠΊΠΎΠ»Π»Π΅ΠΊΡΠΈΠ² ΠΏΡΠΈΡΡΡΠΏΠΈΠ» ΠΊ Π²ΡΡΠ΅Π·Π°Π½ΠΈΡ ΡΠ»ΠΎΠΆΠ½ΡΡ Π»Π΅Π΄ΡΠ½ΡΡ ΡΠΊΡΠ»ΡΠΏΡΡΡ, Π² ΡΠΎ Π²ΡΠ΅ΠΌΡ ΠΊΠ°ΠΊ ΠΏΠΎΠΊΡΠΏΠ°ΡΠ΅Π»ΠΈ Ρ Π±Π»Π°Π³ΠΎΠ³ΠΎΠ²Π΅Π½ΠΈΠ΅ΠΌ Π½Π°Π±Π»ΡΠ΄Π°Π»ΠΈ Π·Π° Π½ΠΈΠΌ, ΠΏΡΡΠΌΠΎ Π²ΠΎΠ·Π»Π΅ ΠΈΠ½ΡΡΠ°Π»Π»ΡΡΠΈΠΈ Β«ΠΠ΅Π΄ΡΠ½ΡΠ΅ Π·Π°ΠΌΠΊΠΈΒ» — ΠΌΠ°ΡΡΡΠ°Π±Π½ΠΎΠ³ΠΎ ΠΈΠΌΠΌΠ΅ΡΡΠΈΠ²Π½ΠΎΠ³ΠΎ Π»Π΅Π΄ΡΠ½ΠΎΠ³ΠΎ ΠΎΠ±ΡΠ°Π·ΠΎΠ²Π°Π½ΠΈΡ, ΡΠ°ΡΠΏΠΎΠ»ΠΎΠΆΠ΅Π½Π½ΠΎΠ³ΠΎ Π²Π½ΡΡΡΠΈ ΠΎΠΊΠ½Π° Π½Π° ΠΡΠ΄ΠΈΡΠΎΠ½-Π°Π²Π΅Π½Ρ, ΠΊΠΎΡΠΎΡΠΎΠ΅ Π±ΡΠ»ΠΎ ΠΏΡΠ΅Π²ΡΠ°ΡΠ΅Π½ΠΎ Π² ΠΌΠΎΡΠΎΠ·ΠΈΠ»ΡΠ½ΠΈΠΊ. ΡΠΎΠ»ΡΠΊΠΎ Π΄Π»Ρ ΠΏΡΠ°Π·Π΄Π½ΠΈΡΠ½ΠΎΠ³ΠΎ ΡΠ΅Π·ΠΎΠ½Π°.
10. ΠΡΠΈΡΡΡΡΠ½Π° Π‘. Π£ΠΈΠ»ΡΡΠΌΡ Π΄Π»Ρ Fortnum ΠΈ Mason
ΠΠ»Π»ΡΡΡΡΠ°ΡΠΈΠΈ Π£ΠΈΠ»ΡΡΠΌΡΠ° Π²ΠΎΠΏΠ»ΠΎΡΠ°ΡΡΡΡ Π² ΡΡΠ΅Ρ ΠΌΠ΅ΡΠ½ΡΡ ΠΆΠΈΠ·Π½Ρ Π½Π° ΡΠΊΡΠ°Π½Π°Ρ Fortnum ΠΈ MasonΠΠ»Π»ΡΡΡΡΠ°ΡΠΎΡ ΠΡΠΈΡΡΡΡΠ½Π° Π‘. Π£ΠΈΠ»ΡΡΠΌΡ Π½Π°ΡΠ°Π»Π° ΡΠ°Π±ΠΎΡΠ°ΡΡ Ρ ΡΠΎΡΠΊΠΎΡΠ½ΡΠΌ Π»ΠΎΠ½Π΄ΠΎΠ½ΡΠΊΠΈΠΌ ΡΠ½ΠΈΠ²Π΅ΡΠΌΠ°Π³ΠΎΠΌ Fortnum ΠΈ Mason Π½Π° ΡΠΎΠΆΠ΄Π΅ΡΡΠ²Π΅Π½ΡΠΊΠΎΠΉ ΡΠΏΠ°ΠΊΠΎΠ²ΠΊΠ΅, ΠΏΡΠ΅ΠΆΠ΄Π΅ ΡΠ΅ΠΌ ΡΡΠ°ΡΡ ΠΏΠΎΡΡΡΠ΅Π½ΠΎ ΠΏΡΠΈΠΌΠ΅Π½ΠΈΡΡ Π΅Π΅ Π±ΠΎΠ³Π°ΡΡΠΉ ΠΎΠ±ΡΠ°Π·Π½ΡΠΉ ΡΡΠΈΠ»Ρ ΠΈ Π½Π° Π²ΠΈΡΡΠΈΠ½Π°Ρ ΠΌΠ°Π³Π°Π·ΠΈΠ½Π°.Π 3D-Π΄ΠΈΠ·Π°ΠΉΠ½Π΅ Π±ΡΠ»ΠΎ ΠΏΡΠ΅Π΄ΡΡΠ°Π²Π»Π΅Π½ΠΎ Π½Π΅ ΠΌΠ΅Π½Π΅Π΅ 300 ΡΠΎΠ², ΠΏΠ΅ΡΡΡ ΠΎΠ² ΠΈ Π°Ρ, ΡΠΊΡΠ°ΡΠ΅Π½Π½ΡΡ Π΄ΡΠ°Π³ΠΎΡΠ΅Π½Π½ΡΠΌΠΈ ΠΊΠ°ΠΌΠ½ΡΠΌΠΈ, Π³ΠΎΠ»ΠΎΠ²Π½ΡΠΌΠΈ ΡΠ±ΠΎΡΠ°ΠΌΠΈ ΠΈ ΠΊΠΎΡΠΎΠ½Π°ΠΌΠΈ.
11. Tiffany & Co: The Great Gatsby
Π ΡΡΠΈΡ ΡΠΎΡΠΊΠΎΡΠ½ΡΡ ΠΎΠΊΠ½Π°Ρ ΠΏΡΠ΅Π΄ΡΡΠ°Π²Π»Π΅Π½Ρ ΡΠΊΡΠ°ΡΠ΅Π½ΠΈΡ ΠΎΡ The Great GatsbyΠΡΠ΅ ΠΎΠ΄Π½Π° Π·Π°ΠΏΠΈΡΡ ΠΎΡ Tiffany & Co — ΡΡΠΎ ΡΠΎΡΠΊΠΎΡΠ½Π°Ρ ΡΠΊΡΠΏΠΎΠ·ΠΈΡΠΈΡ, ΠΏΠΎΡΠ²ΡΡΠ΅Π½Π½Π°Ρ Π²ΡΠΏΡΡΠΊΡ Baz Luhrmann’s The Great Gatsby Π² 2013 Π³ΠΎΠ΄Ρ. Π΄ΠΈΡΠΏΠ»Π΅ΠΈ Π±ΡΠ»ΠΈ ΡΠ°Π·ΡΠ°Π±ΠΎΡΠ°Π½Ρ Π² ΡΠΎΡΡΡΠ΄Π½ΠΈΡΠ΅ΡΡΠ²Π΅ Ρ Π΄ΠΈΠ·Π°ΠΉΠ½Π΅ΡΠΎΠΌ ΠΊΠΎΡΡΡΠΌΠ° ΠΈ ΠΏΡΠΎΠ΄ΡΡΠ΅ΡΠΎΠΌ ΡΠΈΠ»ΡΠΌΠ° ΠΡΡΡΠΈΠ½ ΠΠ°ΡΡΠΈΠ½, ΠΊΠΎΡΠΎΡΠ°Ρ ΠΏΠΎΠ»ΡΡΠΈΠ»Π° Π½Π°Π³ΡΠ°Π΄Ρ Β«ΠΡΠΊΠ°ΡΒ» Π·Π° ΡΠ²ΠΎΠΈ ΡΠ°Π±ΠΎΡΡ.
ΠΠΎΠΊΠ°Π»Ρ Π΄Π»Ρ ΡΠ°ΠΌΠΏΠ°Π½ΡΠΊΠΎΠ³ΠΎ, ΡΡΠΌΠ°Π½Π½ΠΎΠ΅ ΠΎΡΠ²Π΅ΡΠ΅Π½ΠΈΠ΅, ΡΡΠ΅ΠΊΠ»ΡΠ½Π½ΡΠ΅ ΠΏΡΠ·ΡΡΡΠΊΠΈ ΠΈ ΠΌΠ½ΠΎΠΆΠ΅ΡΡΠ²ΠΎ Π΄ΡΠ°Π³ΠΎΡΠ΅Π½Π½ΡΡ ΠΊΠ°ΠΌΠ½Π΅ΠΉ ΡΠΎΠ·Π΄Π°ΡΡ Π²Π΅Π»ΠΈΠΊΠΎΠ»Π΅ΠΏΠ½ΠΎΠ΅ Π²ΠΈΠ΄Π΅Π½ΠΈΠ΅ 1920-Ρ Π³ΠΎΠ΄ΠΎΠ², Π° ΡΠ°ΠΊΠΆΠ΅ Π΄Π΅ΠΌΠΎΠ½ΡΡΡΠΈΡΡΡΡ ΡΠ²Π΅Π»ΠΈΡΠ½ΡΠ΅ ΡΠΊΡΠ°ΡΠ΅Π½ΠΈΡ, ΡΠΎΠ·Π΄Π°Π½Π½ΡΠ΅ ΡΠΏΠ΅ΡΠΈΠ°Π»ΡΠ½ΠΎ Π΄Π»Ρ ΡΠΈΠ»ΡΠΌΠ°. ΠΠΎΡΠΌΠΎΡΡΠΈΡΠ΅ Π±ΠΎΠ»ΡΡΠ΅ ΡΡΠΈΡ Π²Π΅Π»ΠΈΠΊΠΎΠ»Π΅ΠΏΠ½ΡΡ Π΄ΠΈΡΠΏΠ»Π΅Π΅Π² Π½Π° ΡΡΡΠ°Π½ΠΈΡΠ΅ Tiffany & Co Π² Facebook ΠΈΠ»ΠΈ ΠΏΠΎΡΠΌΠΎΡΡΠΈΡΠ΅ ΠΎΡΠΈΠ³ΠΈΠ½Π°Π»ΡΠ½ΡΠ΅ ΡΡΠΊΠΈΠ·Ρ Π·Π΄Π΅ΡΡ.
12. Π’Π΅ΠΊΠΈΠ»Π° PatrΓ³n Π΄Π»Ρ Selfridges
ΠΠΈΠ·Π°ΠΉΠ½ Π²ΠΈΡΡΠΈΠ½Ρ Π±ΡΠ» Π²Π΄ΠΎΡ Π½ΠΎΠ²Π»Π΅Π½ ΠΡΡΡΠΎΠΌ ΠΠ°ΡΠΌΠ°Π½ΠΎΠΌΒ«Π§ΡΠΎΠ±Ρ ΡΠ΄Π΅Π»Π°ΡΡ ΠΎΠ΄Π½Ρ Π±ΡΡΡΠ»ΠΊΡ Π»ΡΡΡΠ΅ΠΉ Π² ΠΌΠΈΡΠ΅ ΡΠ΅ΠΊΠΈΠ»Ρ Π²ΡΡΡΠ΅Π³ΠΎ ΠΊΠ°ΡΠ΅ΡΡΠ²Π°, Π½ΡΠΆΠ½ΠΎ 60 ΡΡΠΊΒ», — Π³Π»Π°ΡΠΈΡ ΡΠ»ΠΎΠ³Π°Π½ Π½Π° ΡΡΠΎΠΉ Π²Π΄ΠΎΡ Π½ΠΎΠ²Π»ΡΡΡΠ΅ΠΉ ΠΊΠΎΠ½ΡΡΡΡΠΊΡΠΈΠΈ Π²ΠΈΡΡΠΈΠ½Ρ.ΠΠΊΠ½ΠΎ PatrΓ³n Selfridges, ΡΠ°Π·ΡΠ°Π±ΠΎΡΠ°Π½Π½ΠΎΠ΅ ΠΡΠ»Π΅ΠΊΠΈΠ½ΡΠΌ, ΡΡΠΎΠΊΡΡΠΈΡΠΎΠ²Π°Π½ΠΎ Π½Π° 60 ΠΎΡΠ΄Π΅Π»ΡΠ½ΡΡ ΡΡΠΊΠ°Ρ , ΠΊΠΎΡΠΎΡΡΠ΅ ΡΠΎΡΡΠ°Π²Π»ΡΡΡ ΠΎΠ΄Π½Ρ Π±ΡΡΡΠ»ΠΊΡ ΡΠ΅ΠΊΠΈΠ»Ρ PatrΓ³n.
ΠΠΎΠ½ΡΠ΅ΠΏΡΠΈΡ ΠΎΠΊΠ½Π° Π±ΡΠ»Π° Π²Π΄ΠΎΡ Π½ΠΎΠ²Π»Π΅Π½Π° ββΡΠΎΡ Π°ΡΡΠΈΡΡΠ° ΠΡΡΡΠ° ΠΠ°ΡΠΌΠ°Π½Π° Π² 1996 Π³ΠΎΠ΄Ρ ΠΏΠΎΠ΄ Π½Π°Π·Π²Π°Π½ΠΈΠ΅ΠΌ Β«15 ΠΏΠ°Ρ ΡΡΠΊΒ».
13. Zim & Zou Π΄Π»Ρ ΠΠ΅ΡΠΌΠ΅ΡΠ°
Duo Zim & Zou ΡΠΎΠ·Π΄Π°Π»ΠΈ ΠΎΡΠ°ΡΠΎΠ²Π°ΡΠ΅Π»ΡΠ½ΡΡ Π»ΠΈΡΡ ΠΈΠ· Π±ΡΠΌΠ°Π³ΠΈZim & Zou — ΠΎΠ΄ΠΈΠ½ ΠΈΠ· ΠΏΡΠ΅Π΄ΡΠ΅ΡΡΠ²Π΅Π½Π½ΠΈΠΊΠΎΠ² Π² ΠΎΠ±Π»Π°ΡΡΠΈ Π±ΡΠΌΠ°ΠΆΠ½ΠΎΠ³ΠΎ ΠΈΡΠΊΡΡΡΡΠ²Π°, ΠΏΡΠΎΠΈΠ·Π²ΠΎΠ΄ΡΡΠΈΠΉ Π½Π΅Π²Π΅ΡΠΎΡΡΠ½ΡΠ΅ ΡΠ΅Π΄Π΅Π²ΡΡ Π½Π° ΠΎΡΠ½ΠΎΠ²Π΅ ΠΆΠΈΠ²ΠΎΡΠ½ΡΡ , ΠΏΡΠΎΠ΄ΡΠΊΡΠΎΠ² ΠΏΠΈΡΠ°Π½ΠΈΡ, ΠΎΠ΄Π΅ΠΆΠ΄Ρ ΠΈ Π±ΠΎΠ»ΡΡΠ΅.
ΠΡΠ΅ Π² Π²ΠΈΡΡΠΈΠ½Π΅ Π±ΡΠ»ΠΎ ΡΠΎΠ·Π΄Π°Π½ΠΎ Π²ΡΡΡΠ½ΡΡΠΡΡΡ ΠΏΡΠΎΠ΄Π΅ΠΌΠΎΠ½ΡΡΡΠΈΡΠΎΠ²Π°Π» ΡΠ²ΠΎΠ΅ ΠΌΠ°ΡΡΠ΅ΡΡΡΠ²ΠΎ Ρ Π½Π΅Π²Π΅ΡΠΎΡΡΠ½ΡΠΌ Π΄ΠΈΠ·Π°ΠΉΠ½ΠΎΠΌ Π²ΠΈΡΡΠΈΠ½Ρ Π΄Π»Ρ ΡΡΠ°Π½ΡΡΠ·ΡΠΊΠΎΠ³ΠΎ Π±ΡΡΠΈΠΊΠ° Hermes. Π’ΠΎΠ»ΡΠΊΠΎ ΠΈΡΠΏΠΎΠ»ΡΠ·ΡΡ Π±ΡΠΌΠ°Π³Ρ ΠΈ ΠΊΠΎΠΆΡ, ΠΎΠ½ΠΈ ΡΠΎΠ·Π΄Π°Π»ΠΈ ΠΏΠΎΡΡΡΡΠ°ΡΡΠ΅ Π·Π°ΠΏΡΡΠ°Π½Π½ΡΡ Π»ΠΈΡΠΈΡΠΊΡ, Π½Π°ΠΏΠΎΠ»Π½Π΅Π½Π½ΡΡ Π±Π΅Π·Π΄Π΅Π»ΡΡΠΊΠ°ΠΌΠΈ, ΠΏΠΎΡΡΠ΄ΠΎΠΉ ΠΈ ΠΎΠ΄Π΅ΠΆΠ΄ΠΎΠΉ. ΠΠΎΠ΄ΡΠΎΠ±Π½Π΅Π΅ ΡΠΈΡΠ°ΠΉΡΠ΅ Π² Π½Π°ΡΠ΅ΠΌ Π½ΠΎΠ²ΠΎΡΡΠ½ΠΎΠΌ ΠΏΠΎΡΡΠ΅ ΠΎ ΠΏΡΠΎΠ΅ΠΊΡΠ΅.
14. ΠΠ°ΠΉΠ» ΠΠΈΠ½ Π΄Π»Ρ Diesel
ΠΠ΅Π΄ΡΡΠΈΠΉ Π΄ΠΈΠ·Π°ΠΉΠ½Π΅Ρ ΠΠ°ΠΉΠ» ΠΠΈΠ½ ΠΏΡΠΈΠΌΠ΅Π½ΠΈΠ» ΡΠ²ΠΎΠΈ Π½Π°Π²ΡΠΊΠΈ ΠΊ ΠΎΡΠΎΠ±ΡΠ°ΠΆΠ΅Π½ΠΈΡ ΠΎΠΊΠΎΠ½, Ρ ΠΏΠΎΡΡΡΡΠ°ΡΡΠΈΠΌΠΈ ΡΠ΅Π·ΡΠ»ΡΡΠ°ΡΠ°ΠΌΠΈΠΠΎΡΠ»Π΅ ΡΠ°Π±ΠΎΡΡ Ρ ΡΠ°ΠΊΠΈΠΌΠΈ Π»ΡΠ΄ΡΠΌΠΈ, ΠΊΠ°ΠΊ Wallpaper *, Gucci, Casio ΠΈ Wired, Π΄ΠΈΠ·Π°ΠΉΠ½Π΅Ρ ΠΠ°ΠΉΠ» ΠΠΈΠ½ ΠΏΠΎΠ²Π΅ΡΠ½ΡΠ»ΡΡ ΠΎΠΊΠ½ΠΎ ΠΎΡΠΎΠ±ΡΠ°ΠΆΠ°Π΅Ρ.ΠΡΠ° ΡΡΠ΅Π½Π° Π±ΡΠ»Π° ΡΠΎΠ·Π΄Π°Π½Π° Π΄Π»Ρ ΡΠ»Π°Π³ΠΌΠ°Π½ΡΠΊΠΎΠ³ΠΎ ΠΌΠ°Π³Π°Π·ΠΈΠ½Π° Diesel Π² ΠΠΎΠ½Π΄ΠΎΠ½Π΅ ΠΈ ΡΠΎΠ΄Π΅ΡΠΆΠΈΡ ΠΌΠΈΠ½ΠΈΠ°ΡΡΡΠ½ΡΠ΅ ΠΌΠΎΠ΄Π΅Π»ΠΈ, Π²ΠΈΠ½ΠΎΠ³ΡΠ°Π΄Π½ΡΠ΅ Π»ΠΎΠ·Ρ ΠΈ Π²ΠΏΠ΅ΡΠ°ΡΠ»ΡΡΡΠΈΠΉ Ρ ΡΠ°ΠΌ.
Bean ΡΠΏΠ΅ΡΠΈΠ°Π»ΠΈΠ·ΠΈΡΡΠ΅ΡΡΡ Π½Π° ΡΠ°ΠΊΡΠΈΠ»ΡΠ½ΡΡ ΡΠ°Π±ΠΎΡΠ°Ρ15. StoreyStudio Π΄Π»Ρ Hermes
ΠΠΎΠΊΠ°Π·Ρ StoreyStudio Π±ΡΠ»ΠΈ Π²Π΄ΠΎΡ Π½ΠΎΠ²Π»Π΅Π½Ρ ΠΏΡΠ°ΠΊΡΠΈΠΊΠΎΠΉ ΡΠΊΠ»Π°Π΄ΠΊΠΈ ΠΊΠ°ΠΌΠ½Π΅ΠΉ Β«Π³ΡΠ°Π²ΠΈΡΠ°ΡΠΈΠΎΠ½Π½ΡΠΉ ΠΊΠ»Π΅ΠΉΒ»16. StudioXAG Π΄Π»Ρ Christian Louboutin
Π’Π΅ΠΌΠ° Β«ΠΠ°ΡΠ΅ΡΡΠ½Π½ΡΠΉ Π² ΠΊΠΎΡΠΌΠΎΡΠ΅Β» ΠΏΠΎΡΠ²ΠΈΠ»Π°ΡΡ Π² Loubout ΠΌΠ°Π³Π°Π·ΠΈΠ½Ρ Π»Π΅ΡΠΎΠΌ 2016 Π³ΠΎΠ΄Π°Π§ΡΠΎΠ±Ρ Π·Π°ΠΏΡΡΡΠΈΡΡ ΡΠ²ΠΎΡ ΠΊΠΎΠ»Π»Π΅ΠΊΡΠΈΡ Π²Π΅ΡΠ½Ρ 2017 Π³ΠΎΠ΄Π°, ΠΡΠΈΡΡΠΈΠ°Π½ ΠΡΠ±ΡΡΠ΅Π½ Ρ ΠΎΡΠ΅Π» ΡΠΎΠ·Π΄Π°ΡΡ ΡΠ΅ΠΌΡ ΠΊΠΎΡΠΌΠΈΡΠ΅ΡΠΊΠΎΠΉ ΡΡΡ, ΠΈ StudioXAG ΠΎΠ±ΡΠ·Π°Π½Π°.ΠΡΡΠΈΠΊΠΈ Christian Louboutin ΠΏΠΎ Π²ΡΠ΅ΠΌΡ ΠΌΠΈΡΡ Π±ΡΠ»ΠΈ ΡΠΊΡΠ°ΡΠ΅Π½Ρ ΡΠ²Π΅ΡΠΊΠ°ΡΡΠΈΠΌΠΈ Π»ΡΠ½Π½ΡΠΌΠΈ ΠΊΠ°ΠΌΠ½ΡΠΌΠΈ, ΡΠΊΡΠ°ΡΠ΅Π½Π½ΡΠΌΠΈ Π΄ΡΠ°Π³ΠΎΡΠ΅Π½Π½ΡΠΌΠΈ ΠΊΠ°ΠΌΠ½ΡΠΌΠΈ ΠΎΠ³Π½ΡΠΌΠΈ ΠΊΠ°Π±ΠΎΡΠΎΠ½ΠΎΠ², Π·Π²Π΅Π·Π΄Π½ΡΠΌΠΈ ΡΠΎΠ½Π°ΠΌΠΈ ΠΈ Π³Π»Π°ΠΌΡΡΠ½ΡΠΌΠΈ ΠΊΠΎΡΠΌΠΎΠ½Π°Π²ΡΠ°ΠΌΠΈ. Π Π²ΠΈΡΡΠΈΠ½Π΅ ΡΠ»Π°Π³ΠΌΠ°Π½ΡΠΊΠΎΠ³ΠΎ ΠΏΠ°ΡΠΈΠΆΡΠΊΠΎΠ³ΠΎ ΠΌΠ°Π³Π°Π·ΠΈΠ½Π° Π²Π·ΠΎΡΠ²Π°Π»ΠΈ ΠΊΠ°ΠΏΡΡΠ»Ρ ΠΠΠ, ΡΡΠΎΠ±Ρ Π·Π°ΠΏΠΎΠ»Π½ΠΈΡΡ Π²ΡΠ΅ ΠΎΠΊΠ½ΠΎ, Π° Π½ΠΎΠ²Π°Ρ ΠΊΠΎΠ»Π»Π΅ΠΊΡΠΈΡ Π·Π°Π²ΠΈΡΠ»Π° ΠΌΠ΅ΠΆΠ΄Ρ Ρ ΡΠΎΠΌΠΈΡΠΎΠ²Π°Π½Π½ΡΠΌΠΈ ΠΏΠ°Π½Π΅Π»ΡΠΌΠΈ.
17. ΠΠ΅ΠΊΠΊΠΈ Π‘Π»ΠΎΡΠ½ Π΄Π»Ρ Selfridges
Bright Young Things — Π½ΠΎΠ²Π°ΡΠΎΡΡΠΊΠΈΠΉ ΠΏΡΠΎΠ΅ΠΊΡ Selfridges, ΠΊΠΎΡΠΎΡΡΠΉ ΠΈΡΠ΅Ρ ΠΈ Π·Π°ΡΠΈΡΠ°Π΅Ρ ΡΠ°ΠΌΡΡ ΡΡΠΊΠΈΡ ΠΌΠΎΠ»ΠΎΠ΄ΡΡ Π°Π²ΡΠΎΡΠΎΠ² Π² ΠΠ΅Π»ΠΈΠΊΠΎΠ±ΡΠΈΡΠ°Π½ΠΈΠΈ.ΠΡΠ΄Ρ ΡΠΎ ΠΌΠΎΠ΄Π°, Π³ΡΠ°ΡΠΈΡΠ΅ΡΠΊΠΈΠΉ Π΄ΠΈΠ·Π°ΠΉΠ½, ΠΈΠ»Π»ΡΡΡΡΠ°ΡΠΈΡ ΠΈΠ»ΠΈ Π΅Π΄Π°, Selfridges Π΄Π°Π΅Ρ ΠΌΠΎΠ»ΠΎΠ΄ΡΠΌ Π²Π·ΡΠΎΡΠ»ΡΠΌ Π²ΠΎΠ·ΠΌΠΎΠΆΠ½ΠΎΡΡΡ Π΄Π΅ΠΌΠΎΠ½ΡΡΡΠΈΡΠΎΠ²Π°ΡΡ ΡΠ²ΠΎΠΈ Π½Π°Π²ΡΠΊΠΈ Π½Π° Π΅ΠΆΠ΅Π³ΠΎΠ΄Π½ΠΎΠΉ ΠΎΡΠ½ΠΎΠ²Π΅.
Π ΡΡΠΎΠΌ Π³ΠΎΠ΄Ρ Ρ ΡΠ΄ΠΎΠΆΠ½ΠΈΠΊ ΠΈ ΠΏΠΎΠΏΠΌΠ΅ΠΉΠΊΠ΅Ρ ΠΠ΅ΠΊΠΊΠΈ Π‘Π»ΠΎΡΠ½ ΡΠΎΠ·Π΄Π°Π»Π° ΡΡΠΎΡ ΡΠΈΠΌΠΏΠ°ΡΠΈΡΠ½ΡΠΉ, ΠΎΡΠ½ΠΎΠ²Π°Π½Π½ΡΠΉ Π½Π° ΠΏΠ΅ΡΡΠΎΠ½Π°ΠΆΠ°Ρ Π²ΠΈΡΡΠΈΠ½Π° Π΄Π»Ρ ΠΎΠ΄Π½ΠΎΠ³ΠΎ ΠΈΠ· ΠΌΠ°Π³Π°Π·ΠΈΠ½ΠΎΠ² Selfridges Π² ΠΠΎΠ½Π΄ΠΎΠ½Π΅. ΠΠΈΠ»Π»ΠΈΠΎΠ½ Π»ΡΠ΄Π΅ΠΉ ΠΏΡΠΎΡ ΠΎΠ΄ΠΈΡ ΠΌΠΈΠΌΠΎ Π·Π½Π°ΠΌΠ΅Π½ΠΈΡΡΡ ΠΎΠΊΠΎΠ½ ΠΊΠ°ΠΆΠ΄ΡΡ Π½Π΅Π΄Π΅Π»Ρ, ΠΈ Π΄ΠΈΡΠΏΠ»Π΅ΠΈ ΠΏΡΠ΅Π΄ΠΎΡΡΠ°Π²Π»ΡΡΡ Π½Π΅Π²Π΅ΡΠΎΡΡΠ½ΡΡ ΡΡΠ°ΡΡΠΎΠ²ΡΡ ΠΏΠ»ΠΎΡΠ°Π΄ΠΊΡ Π΄Π»Ρ Π½Π°ΡΠΈΠ½Π°ΡΡΠΈΡ Π΄ΠΈΠ·Π°ΠΉΠ½Π΅ΡΠΎΠ², ΡΡΠΎΠ±Ρ ΠΏΡΠΎΠ΄Π΅ΠΌΠΎΠ½ΡΡΡΠΈΡΠΎΠ²Π°ΡΡ ΡΠ²ΠΎΠΈ ΡΠ²ΠΎΡΠ΅Π½ΠΈΡ ΠΏΡΠ±Π»ΠΈΠΊΠ΅.
18. ΠΠ°Π²ΡΡΠ°ΠΊ Π΄Π»Ρ TNT
Π§ΡΠΎΠ±Ρ ΠΏΡΠΎΠ΄Π²ΠΈΠ³Π°ΡΡ ΡΠΎΡ TNT Β«ΠΠΎΡΠΏΡΠΈΡΡΠΈΠ΅ ΠΏΡΠ΅ΡΡΡΠΏΠ½ΠΎΡΡΠΈΒ», Π΄ΠΈΠ·Π°ΠΉΠ½Π΅ΡΡΠΊΠ°Ρ ΡΠΈΡΠΌΠ° Β«ΠΠ°Π²ΡΡΠ°ΠΊΒ» Π²ΠΎΠ·ΡΠΎΠ΄ΠΈΠ»Π° Π·Π½Π°ΠΊΠΎΠ²ΡΠΉ ΠΌΠ΅ΡΠΎΠ΄ ΠΏΡΠΎΡΠ»ΡΡ Π»Π΅Ρ, ΡΡΠΎΠ±Ρ ΡΠΎΠ·Π΄Π°ΡΡ ΠΎΠΏΡΡ ΡΠ΅ΡΠ΅Π½ΠΈΡ Π°Π½Π°Π³ΡΠ°ΠΌΠΌ Π½Π° ΡΠ»ΠΈΡΠ°Ρ ΠΡΡ-ΠΠΎΡΠΊΠ°.
Π‘ΠΎΡΡΠΎΡΡΠΈΠΉ ΠΈΠ· Π±ΠΎΠ»Π΅Π΅ ΡΠ΅ΠΌ 40 000 ΡΠΈΠ·ΠΈΡΠ΅ΡΠΊΠΈΡ ΡΠΎΡΠ΅ΠΊ, Π²ΡΠ°ΡΠ°ΡΡΠΈΡ ΡΡ Ρ ΡΠ΅ΡΠ½ΠΎΠ³ΠΎ Π½Π° Π±Π΅Π»ΡΠΉ Π² 15 ΡΠ°Π· Π±ΡΡΡΡΠ΅Π΅, ΡΠ΅ΠΌ ΠΏΠ΅ΡΠ²ΠΎΠ½Π°ΡΠ°Π»ΡΠ½ΠΎ ΠΏΡΠ΅Π΄ΠΏΠΎΠ»Π°Π³Π°Π»ΠΎΡΡ, ΡΠΊΡΠ°Π½ ΠΎΡΠΎΠ±ΡΠ°ΠΆΠ°Π΅Ρ ΠΈΠ·ΠΎΠ±ΡΠ°ΠΆΠ΅Π½ΠΈΠ΅ Π»ΡΠ±ΠΎΠ³ΠΎ ΠΏΡΠΎΡ ΠΎΠ΄ΡΡΠ΅Π³ΠΎ ΠΌΠΈΠΌΠΎ. ΠΡΠΎ ΠΎΠΊΠ½ΠΎ ΠΎΡΠΎΠ±ΡΠ°ΠΆΠ΅Π½ΠΈΡ Π² ΠΎΡΠ»ΠΈΡΠΈΠ΅ ΠΎΡ Π»ΡΠ±ΠΎΠ³ΠΎ Π΄ΡΡΠ³ΠΎΠ³ΠΎ.
ΠΠΎΠ΄ΡΠΎΠ±Π½Π΅Π΅:
,